Murata Electronics North America 910M Wireless LAN User Manual 04 0132 Manual

Murata Electronics North America Wireless LAN 04 0132 Manual

USERS MANUAL

  Model:  WIT910         Advanced Compliance Solutions                FCC ID:  HSW-910M       Frequency Hopping  Spread Spectrum Transmitter Modular Approval  Certification Test Report  FCC ID:  HSW-910M  ACS Report Number:  04-0132-15C  Manufacturer: Cirronet, Inc. Equipment Type:  Transceiver Model: WIT910  Manual
WIT910 900MHz Spread Spectrum Wireless Industrial Transceiver      Integration Guide        5375 Oakbrook Parkway Norcross, Georgia  30093 www.cirronet.com +1 (678) 684-2000
TABLE OF CONTENTS 1.  INTRODUCTION .....................................................................................................................1 1.1. Why Spread Spectrum?.....................................................................................................1 1.2. Frequency Hopping vs. Direct Sequence ..........................................................................2 2.  RADIO OPERATION ...............................................................................................................4 2.1.  Synchronization and Registration .....................................................................................4 2.2.  Data Transmission............................................................................................................5 2.2.1.  Point-to-Point...........................................................................................................5 2.2.2.  Point-to-Multipoint ...................................................................................................6 2.2.3.  Handle Assignment. ................................................................................................6 2.2.4. TDMA Operation ......................................................................................................7 2.2.5.  Full Duplex Communication ....................................................................................9 2.2.6.  Error-free Packet Transmission Using ARQ............................................................9 2.3.  Modes of Operation ........................................................................................................10 2.3.1.  Control and Data Modes .......................................................................................10 2.3.2.  Sleep Mode ...........................................................................................................10 2.3.3.  Low Power Mode and Duty Cycling ......................................................................11 2.3.4. RF Flow Control Mode ...........................................................................................11 3.  PROTOCOL MODES.............................................................................................................12 3.1.1.  Data Packet...........................................................................................................14 3.1.3.  Connect Packet.....................................................................................................15 3.1.4.  Disconnect Packet  (base only, receive only)........................................................15 4.  MODEM INTERFACE............................................................................................................16 4.1.  Interfacing to 5-volt Systems...........................................................................................17 4.2.  Evaluation Unit and OEM Module Differences................................................................17 4.3.  Three Wire Operation .....................................................................................................17 4.4.  Power-On Reset Requirements......................................................................................18 5.  MODEM COMMANDS...........................................................................................................19 5.1.  Serial Commands ...........................................................................................................19 5.2.  Network Commands .......................................................................................................21 5.3.  Protocol Commands .......................................................................................................23 5.4.  Status Commands ..........................................................................................................26 5.5.  Memory Commands........................................................................................................27 5.6.  Modem Command Summary ..........................................................................................28 6.  WIT910 DEVELOPER’S KIT..................................................................................................29 6.1.  WinCOM .........................................................................................................................30 6.1.1 WinCOM Tools........................................................................................................32 6.2.  Demonstration Procedure...............................................................................................34 6.3.  Troubleshooting ..............................................................................................................35 7.  APPENDICES........................................................................................................................37 7.1.  Technical Specifications .................................................................................................37 7.1.1.  Ordering Information .............................................................................................37 7.1.2.  Power Specifications.............................................................................................37 7.1.3.  RF Specifications ..................................................................................................37
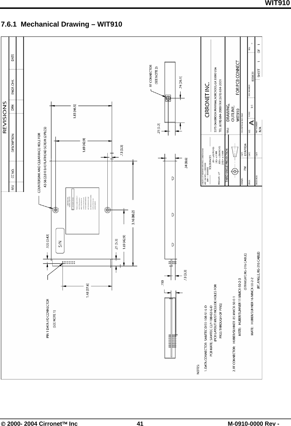
7.1.4.  Mechanical Specifications.....................................................................................37 7.2.  Serial Connector Pinouts ................................................................................................38 7.3.  Approved Antennas ........................................................................................................38 7.4.  Technical Support...........................................................................................................39 7.6.1  Mechanical Drawing – WIT910M4 (Pins Down) ...........................................................41 7.7  Warranty ..........................................................................................................................42
WIT910 © 2000- 2004 Cirronet™ Inc  1  M-0910-0000 Rev - 1.  INTRODUCTION  The WIT910 radio transceiver provides reliable wireless connectivity for either point-to-point or multipoint applications.  Frequency hopping spread spectrum technology ensures maximum resistance to noise and multipath fading and robustness in the presence of interfering signals, while operation in the 900MHz ISM band allows license-free use and worldwide compliance.  Standard communication rates between the WIT910 and the host are supported between 1200pbs and 57.6bps. Non-standard rates are supported as well. An on-board buffer and an error-correcting over-the-air protocol provide smooth data flow and simplify the task of integration with existing applications.   - Multipath fading impervious frequency hopping technology with 54 frequency channels            (902 to 927 MHz). -  Supports point-to-point or multipoint applications. -  Meets FCC rules 15.247for license-free operation.    -  20+ mile range with omni antenna. - Transparent ARQ protocol w/512byte buffer ensures data integrity. -  Digital addressing supports up to 64 networks, with 62 remotes per network.   -  Low power 3.3v CMOS signals  -  Selectable 10mW, 100mW or 500mW transmit power. -  Built-in data scrambling reduces possibility of eavesdropping. - Nonvolatile memory stores configuration when powered off. -  Smart power management features for low current consumption.    -  Dynamic TDMA slot assignment that maximizes throughput.  -  Simple serial interface handles both data and control at up to 115.2 bps.     1.1. Why Spread Spectrum?  The radio transmission channel is very hostile, corrupted by noise, path loss and interfering transmissions from other radios.  Even in a pure interference-free environment, radio performance faces serious degradation through a phenomenon known as multipath fading.  Multipath fading results when two or more reflected rays of the transmitted signal arrive at the receiving antenna with opposing phase, thereby partially or completely canceling the desired signal.  This is a problem particularly prevalent in indoor installations.  In the frequency domain, a multipath fade can be described as a frequency-selective notch that shifts in location and intensity over time as reflections change due to motion of the radio or objects within its range.  At any given time, multipath fades will typically occupy 1% - 2% of the band.  This means that from a probabilistic viewpoint, a conventional radio system faces a 1% - 2% chance of signal impairment at any given time due to multipath.
WIT910 © 2000- 2004 Cirronet™ Inc  2  M-0910-0000 Rev - Spread spectrum reduces the vulnerability of a radio system to interference from both jammers and multipath fading by distributing the transmitted signal over a larger region of the frequency band than would otherwise be necessary to send the information.  This allows the signal to be reconstructed even though part of it may be lost or corrupted in transit.      Figure 1Narrowband vs. spread spectrum in the presence of interference   1.2. Frequency Hopping vs. Direct Sequence  The two primary approaches to spread spectrum are direct sequence (DS) and frequency hopping (FH), either of which can generally be adapted to a given application.  Direct sequence spread spectrum is produced by multiplying the transmitted data stream by a much faster, noise-like repeating pattern.  The ratio by which this modulating pattern exceeds the bit rate of the baseband data is called the processing gain, and is equal to the amount of rejection the system affords against narrowband interference from multipath and jammers.  Transmitting the data signal as usual, but varying the carrier frequency rapidly according to a pseudo-random pattern over a broad range of channels produces a frequency hopping spectrum system.
WIT910   Figure 2 Forms of spread spectrum  One disadvantage of direct sequence systems is that due to spectrum constraints and the design difficulties of broadband receivers, they generally employ only a minimal amount of spreading (typically no more than the minimum required by the regulating agencies).  For this reason, the ability of DS systems to overcome fading and in-band jammers is relatively weak.  By contrast, FH systems are capable of probing the entire band if necessary to find a channel free of interference.  Essentially, this means that a FH system will degrade gracefully as the channel gets noisier while a DS system may exhibit uneven coverage or work well until a certain point and then give out completely.     Because it offers greater immunity to interfering signals, FH is often the preferred choice for co-located systems.  Since direct sequence signals are very wide, they tend to offer few non-overlapping channels, whereas multiple hoppers may interleave with less interference.  Frequency hopping does carry some disadvantage in that as the transmitter cycles through the hopping pattern it is nearly certain to visit a few blocked channels where no data can be sent.  If these channels are the same from trip to trip, they can be memorized and avoided; unfortunately, this is generally not the case, as it may take several seconds to completely cover the hop sequence during which time the multipath delay profile may have changed substantially.  To ensure seamless operation throughout these outages, a hopping radio must be capable of buffering its data until a clear channel can be found.  A second consideration of frequency hopping systems is that they require an initial acquisition period during which the receiver must lock on to the moving carrier of the transmitter before any data can be sent, which typically takes several seconds.  In summary, frequency hopping systems generally feature greater coverage and channel utilization than comparable direct sequence systems.  Of course, other implementation factors such as size, cost, power consumption and ease of implementation must also be considered before a final radio design choice can be made.  © 2000- 2004 Cirronet™ Inc  3  M-0910-0000 Rev -
WIT910 2.  RADIO OPERATION  2.1.  Synchronization and Registration  As discussed above, frequency hopping radios periodically change the frequency at which they transmit.  In order for the other radios in the network to receive the transmission, they must be listening to the frequency over which the current transmission is being sent.  To do this, all the radios in the net must be synchronized and must be set to the same hopping pattern.  In point-to-point or point-to-multipoint arrangements, one radio module is designated as the base station.  All other radios are designated remotes.  One of the responsibilities of the base station is to transmit a synchronization signal to the remotes to allow them to synchronize with the base station.  Since the remotes know the hopping pattern, once they are synchronized with the base station, they know which frequency to hop to and when.  Every time the base station hops to a different frequency, it immediately transmits a synchronizing signal.  When a remote is powered on, it rapidly scans the frequency band for the synchronizing signal.  Since the base station is transmitting over 54 frequencies and the remote is scanning 54 frequencies, it can take several seconds for a remote to synch up with the base station.  Once a remote has synchronized with the base station, it must request registration from the base station.  The registration process identifies to the base station the remotes from which transmissions will be received and not discarded.  Registration also allows tracking of remotes entering and leaving the network.  The base station builds a table of serial numbers of registered remotes.  To improve efficiency, the 24-bit remote serial number is assigned a 6-bit “handle” number.  Two of these are reserved for system use, thus each base station can register 62 separate remotes.  This handle is how user applications will know the remotes.  Note that if a remote leaves the coverage area and then re-enters, it may be assigned a different handle.  To detect if a remote has gone offline or out of range, the registration must be “renewed” once every 256 hops.  Registration is completely automatic and requires no user application intervention.  When the remote is registered, it will receive several network parameters from the base.  This allows the base to automatically update these network parameters in the remotes over the air.  Once a parameter has been changed in the base, it is automatically changed in the remotes.  The parameters automatically changed are hop duration and the duty cycle.  At the beginning of each hop, the base station transmits a synchronizing signal.  After the synchronizing signal has been sent, the base will transmit any data in its buffer unless data transmit delay has been set.  The data transmit delay parameter allows for the transmission of groups of continuous data in transparent mode (protocol mode 00H). The amount of data that the base station can transmit per hop is determined by the base slot © 2000- 2004 Cirronet™ Inc  4  M-0910-0000 Rev -
WIT910 size parameter. The maximum amount of data sent by a base station per hop is 208 bytes.  If there is no data to be sent, the base station will not transmit until the next frequency.    The operation for remotes is similar to the base station without the synchronizing signal. The amount of data a remote can send on one hop is dependent upon the hop duration, the base slot size and the number of registered remotes. 212 bytes per hop is the maximum data length a remote can transmit per hop, subject to limitations imposed by the hop duration, the base slot size and the number of registered remotes. A detailed explanation of this relationship is provided in Section 2.2.3. Minimum data length and data transmit delay operate the same as with the base station.  Except for the registration process which occurs only when a remote logs onto the network, the whole procedure is repeated on every frequency hop.  Refer to the section on Modem Commands for complete details on parameters affecting the transmission of data.     2.2.  Data Transmission  The WIT910 supports two network configurations: point-to-point and point-to-multipoint.  In a point-to-point network, one radio is set up as the base station and the other radio is set up as a remote.  In a point-to-multipoint network, a star topology is used with the radio set up as a base station acting as the central communications point and all other radios in the network set up as remotes.  In this configuration, all communications take place between the base station and any one of the remotes.  Remotes cannot communicate directly with each other.  It should be noted that point-to-point mode is a subset of point-to-multipoint mode and therefore there is no need to specify one mode or the other.  2.2.1.  Point-to-Point  In point-to-point mode, unless data transmit delay or minimum data length have been set, the base station will transmit whatever data is in its buffer limited to 208 bytes or as limited by the base slot size.  If the base station has more data than can be sent on one hop, the remaining data will be sent on subsequent hops.  In addition to the data, the base station adds some information to the transmission over the RF link.  It adds the address of the remote to which it is transmitting, even though in a point-to-point mode there is only one remote.  It also adds a sequence number to identify the transmission to the remote.  This is needed in the case of acknowledging successful transmissions and retransmitting unsuccessful transmissions.  Also added is a 24-bit CRC to allow the base to check the received transmission for errors.  When the remote receives the transmission, it will acknowledge the transmission if it was received without errors.  If no acknowledgment is received, the base station will retransmit the same data on the next frequency hop.    In point-to-point mode, a remote will transmit whatever data is in its buffer up to the limit of its maximum data length. If desired, minimum data length and data transmit delay can © 2000- 2004 Cirronet™ Inc  5  M-0910-0000 Rev -
WIT910 also be set, which force the remote to wait until a certain amount of data is available or the specified delay is exceeded before transmitting.  If the remote has more data than can be sent on one hop, it will send as much data as possible as a packet, adding its own address, a packet sequence number and 24-bit CRC.  These additional bytes are transparent to the user application if the protocol mode is 00H (which is the default).  In the event a remote has more data to send, the data will be sent on subsequent hops.  If the transmission is received by the base station without errors, the base station will acknowledge the transmission.  If the remote does not receive an acknowledgment, it will retransmit the data on the next frequency hop.  To the user application, acknowledgments and retransmissions all take place behind the scenes without the need for user intervention.  The WIT910 has a point-to-point direct mode which fixes the remote radio’s handle at 30H. This mode is recommended for point-to-point applications, especially if the remote is likely to periodically leave and re-enter the coverage area of the base. See the section on Network Commands for details of this mode.  2.2.2.  Point-to-Multipoint  In point-to-multipoint mode, data sent from the user application to the base station must be packetized by the user application unless the remote device can distinguish between transmissions intended for it and transmissions intended for other remote devices.  This is necessary to identify the remote to which the base station should send data.  When the user packet is received by the remote, if the remote is in transparent mode (protocol mode 0), the packetization bytes are stripped by the remote.  In this instance the remote host receives just data.  If the remote is not in transparent mode, the remote host will receive the appropriate packet header as specified by the remote’s protocol mode.  Refer to the section Protocol Modes for details on the various packet formats.  When a remote sends data to a base station in point-to-multipoint mode, the remote host does not need to perform any packetization of the data.  Remotes can operate in transparent mode even though the base is operating in a packet mode. The remote will add address, sequence and CRC bytes as in the point-to-point mode.  When the base station receives the data, the base station will add packetization header bytes according to its protocol mode setting.     2.2.3. Handle Assignment  Handles are used to reduce overhead by not sending the unique 24-bit serial number ID of a remote when sending or receiving data. The use of the various protocol modes causes the base radio to issue CONNECT packets when a new remote registers with the base. In addition to indicating the presence of a new remote, the CONNECT packets provide the current relationship between remote serial numbers and handles.   © 2000- 2004 Cirronet™ Inc  6  M-0910-0000 Rev -
WIT910 When a remote links to a base and requests registration, it requests by default that it be assigned handle 30H. This default request can be changed by the Set Default Handle command. If that handle is not currently in use by another remote, the base will assign that handle to the remote. If the requested handle is already in use by another remote, the base will assign the next higher handle that is available. Thus, if remote requests handle 30H and that handle is already assigned, the base will assign the remote handle 31H if that is available. If 31H is already assigned, the base will assign handle 32H is that is available and so on.   When a remote leaves the coverage area of the base or otherwise loses link, e.g. the remote was turned off or put into sleep mode, the base detects this event when the remote does not renew its registration within 255 hops. With the default setting of 25msec per hop, this could be as along as 6.38 seconds. If within this time the remote re-establishes link with the base, the previous handle assigned to this remote will still be marked active in the base radio. Thus the remote will be assigned a new handle. If the base radio is in one of the protocol modes, a new CONNECT packet will be issued indicating the current handle assigned to the remote. The remote is identified by the serial number that is contained in the CONNECT packet.   If the radio is to be used in a point-to-point mode where there is only one base and one remote, using the point-to-point mode command of the radios will override this handle mechanism and always assign the remote the same handle.   2.2.4. TDMA Operation  For applications needing guaranteed bandwidth availability, the TDMA operation of the WIT910 can meet this requirement. In the WIT910 TDMA scheme, each remote has an assigned time slot during which it can transmit.  The base station time slot is set independently of the remote time slots through the Set Base Slot Size command.  The base station assigns each remote a time slot and informs the remotes of the size of the time slot.  All remote time slots are the same size that is determined by the number of remotes registered with the base station.  The slot size is a dynamic variable that changes as the number of registered remotes changes.  The remotes are continually updated with the time slot size.  This approach continually maximizes the data throughput.  The base station divides the amount of time available per hop by the number of registered remotes up to a maximum of 16 times slots per hop.  If the number of registered remotes is greater than 16, the time slots will be spread across the required number of hops.  For networks with more than 16 possible remotes, the Set Duty Cycle command must be used to specify a duty cycle -- the number of hops over which the time slots must be spread.  For 1 to 16 remotes, no duty cycle is required; for 17 to 32 remotes a duty cycle of at least ½ is required; and for 33 to 62 remotes a duty cycle of ¼ or more is necessary.  An added benefit of using the power save mode to set a duty cycle is improved average current consumption efficiency.  Refer to the Status Commands section for details of this command.  © 2000- 2004 Cirronet™ Inc  7  M-0910-0000 Rev -
WIT910 When setting up a network, keep in mind that time slot length, maximum packet size and hop duration are all interrelated.  The hop duration parameter will determine the time slot size and the maximum amount of data that can be transmitted per hop by the remotes. There is a hard limit of the absolute maximum amount of data that can be sent on any given hop of 212 bytes regardless of any parameters. (Note that this is different than the 208 byte maximum for the base station.) The base station requires 7.04 ms overhead for tuning, the synchronization signal and parameter updating, as well as 1.11 ms overhead for each remote.  Thus the amount of time allocated per remote slot is roughly:  hop duration – base slot – 7.04ms - ( # of registered remotes)·1.11ms ( # of registered remotes)  Take for example a network comprised of a base station and 5 remotes.  A hop duration of 25 ms is chosen.  We decide that the base station needs to be able to send up to 32 bytes each hop (equivalent to a capacity for the base of  19.2 kbps asynchronous).  Counting the 7.04 ms overhead for the base packet and making use of the fact that our RF rate is 172.8 kbps, we determine that the base slot requires approximately:    32·8 172.8kbps + 7.04 ms  =  8.52 ms  Each remote time slot will be:      25 ms – 8.52 ms – (5)·1.11 ms    = 2.18 ms 5  From our RF data rate of 172.8kbps we see that it takes 46.3 µs to send a byte of data, so each remote will be able to send up to                =  47 bytes of data per hop. 2.18 ms 46.3µs us However, the WIT910 sends data in groups of 4 bytes. Thus, each remote will be able to send 44 bytes of data. Note that the 44 bytes is the actual number of data bytes that can be sent.  If the WIT910 is using a protocol mode, the packet overhead does not need to be considered.  So in this example, the total capacity per remote would be:  44 bytes 25 ms =  14.08 kbps  It is also useful to remember that the asynchronous data input to the WIT910 is stripped of its start and stop bits during transmission by the radio, yielding a "bonus" of 10/8 or 25% in additional capacity. Thus, 1.25 x 14.08 kbps = 17.6 kbps asynchronous. In actual deployments, some allowance must be made for retransmissions of data, yielding a throughput somewhat less than the calculated value.    The above calculations are provided as a means of estimating the capacity of a multipoint WIT910 network.  To determine the precise amount of capacity, you can actually set up © 2000- 2004 Cirronet™ Inc  8  M-0910-0000 Rev -
WIT910 the radio system and then query the maximum data length from one of the remotes in control mode to discover its exact setting.  Divide this number by the hop duration as above to get the remote's exact capacity.  2.2.5.  Full Duplex Communication  From an application perspective, the WIT910 communicates in full duplex.  That is, both the user application and the remote terminal can be transmitting data without waiting for the other to finish.  At the radio level, the base station and remotes do not actually transmit at the same time.  If they did, the transmissions would collide.  As discussed earlier, the base station transmits a synchronization signal at the beginning of each hop followed by a packet of data.  After the base station transmission, the remotes will transmit.  Each base station and remote transmission may be just part of a complete transmission from the user application or the remote terminal.  Thus, from an application perspective, the radios are communicating in full duplex mode since the base station will receive data from a remote before completing a transmission to the remote.   2.2.6.  Error-free Packet Transmission Using ARQ  The radio medium is a hostile environment for data transmission.  In a typical office or factory environment, 1% - 2% of the 900MHz frequency band may be unusable at any given time at any given station due to noise, interference or multipath fading.  For narrowband radio systems (and also many spread spectrum radio systems which use direct sequence spreading), this would imply a loss of contact on average of over 30 seconds per hour per station.   The WIT910 overcomes this problem by hopping rapidly throughout the band in a pseudo-random pattern.  If a message fails to get through on a particular channel, the WIT910 simply tries again on the next channel.  Even if two thirds of the band are unusable, the WIT910 can still communicate reliably.  Data input to the WIT910 is broken up by the radio into packets.  A 24-bit checksum is attached to each packet to verify that it was correctly received.  If the packet is received correctly, the receiving station sends an acknowledgment, or ACK, back to the transmitting station.  If the transmitter doesn't receive an ACK, at the next frequency hop it will attempt to send the packet again.  When ARQ is enabled, the transmitting radio will attempt to send a packet packet attempts limit times before discarding the packet.  A value of 00H disables ARQ.  When it is disabled, any transmission received with errors is discarded. It is the responsibility of the user application to track missing packets.  A second parameter, ARQ Mode, allows the choice between using ARQ to resend unsuccessful transmissions or always sending a transmission packet attempts limit times regardless of the success or failure of any given transmission.  All of this error detection and correction is transparent to the user application.  All the user application sees is error-free data from the modem.  However, if the ARQ mode is disabled, transmissions with errors are discarded, and missing data detection will be the © 2000- 2004 Cirronet™ Inc  9  M-0910-0000 Rev -
WIT910 responsibility of the user application.  Refer to the Protocol Commands section for complete details.    2.3.  Modes of Operation  2.3.1.  Control and Data Modes   The WIT910 has two modes of operation: Control mode and Data mode.  When in Control Mode, the various radio and modem parameters can be modified.  When in Data Mode, only data can be transmitted.  The default mode is Data Mode.  There are two ways to enter Control Mode.  The first way is to assert the Configure (CFG) pin on the modem.  Upon entering Control Mode, the modem will respond with a > prompt.  After each command is entered, the modem will again respond with a > prompt.  As long as the CFG pin is asserted, data sent to the modem will be interpreted as command data.  Once the CFG pin is de-asserted, the modem will return to Data Mode.    The second method for entering Control Mode is to send the escape sequence :wit2410 (all lower case) followed by a carriage return. In the default mode, the escape sequence is only valid immediately after power up or after de-assertion of the Sleep pin on the modem.  The modem will respond in the same way with a > prompt.  To return to Data Mode, enter the Exit Modem Control Mode command, z>, or assert and de-assert the Sleep pin.  There are three modes for the escape sequence, controlled by the Set Escape Sequence Mode command, zc:   zc = 0   Escape sequence disabled  zc = 1   Escape sequence available once at startup (default setting)  zc = 2   Escape sequence available at any time  The zc2 mode setting is useful if the user application has a need to change the modem settings "on the fly". In this mode the escape sequence is always enabled and may be sent at any time after a pause of at least 20ms. The modem will respond in the same way as when in the default mode. It is necessary to issue the Exit Modem Control Mode command, z>, before resuming data transmission.  Note: The escape sequence must be interpreted as data until the last character is received and as such may be transmitted by the modem to any listening modems.  2.3.2.  Sleep Mode  To save power consumption for intermittent transmit applications, the WIT910 supports a Sleep Mode.  Sleep Mode is entered by asserting the Sleep pin on the modem interface.  While in Sleep Mode, the modem consumes less than 250 µA.  This mode allows the radio to be powered off while the terminal device remains powered.  After leaving Sleep Mode, the radio must re-synchronize with the base station and re-register.    © 2000- 2004 Cirronet™ Inc  10  M-0910-0000 Rev -
WIT910 2.3.3.  Low Power Mode and Duty Cycling  To conserve power, WIT910 remotes power down the receiver and transmitter between hops when not in use.  Base stations must remain active all the time to handle any transmission from any remote.  Remotes can save even more power by enabling the duty cycle feature.  This feature causes a remote to power down for 2N frequency hops where 1/2N is the duty cycle.  Rather than attempting to transmit on every frequency hop when data is in the transmit buffer, a remote will attempt to transmit only every 2N hops.  Roughly speaking, this will proportionately reduce the average power consumption while increasing average latency.  When there are more than 16 remotes being operated, duty cycling must be enabled since a maximum of 16 time slots is available per hop.  When a remote radio is powered up but is out of range of a base station, it will continuous scan the frequency bands for the presence of a base radio. During this scanning the radio can consume up to 70 mA of current at 3.3-volts. The WIT910 employs a switching regulator so the current consumption will be less at higher voltages.   2.3.4. RF Flow Control Mode  Because of slight differences in baud rates between transmitting and receiving hosts, when sending large amounts of data (100’s of KB) in one direction in a point-to-point application, it is possible to overrun the receive buffer of the receiving radio. For example a nominal 57.6Kbaud at the transmitting radio’s host might really be 57,601 and at the receiving radio’s host it might be 56,599. This is similar to a situation where the transmitting radio is sent data at a higher baud rate than the baud rate at which data is received by the receiving host. To compensate for the variations in nominal baud rates, the WIT910 supports an RF flow control mode for point-to-point operation. In this mode, when the receive buffer of the receiving WIT910 is close to full, the receiving WIT910 stops acknowledging transmissions. The transmitting radio is set to infinite retries which invokes the RF flow control mode (See Set Packet Attempts Limit in Section 5.3). The receiving radio will not begin acknowledging transmissions from the transmitting radio until more room in the receive buffer has become available. This will cause data in the transmit buffer of the transmitting radio to back up. If it backs up to the point where the transmit buffer fills up, the transmitting radio will deassert CTS stopping data from the transmitting radio’s host device. Once room is available in the receiving radio’s buffer, the receiving radio will begin acknowledging transmissions from the transmitting radio allowing the transmitting radio’s buffer to begin to empty which will cause the transmitting radio to reassert CTS. Either one or both of the radios in a point-to-point installation can be configured for the RF flow control. If this mode is invoked in a point-to-multipoint installation, communications with all radios will be stopped when any one radio’s receive buffer becomes full. © 2000- 2004 Cirronet™ Inc  11  M-0910-0000 Rev -
WIT910 3.  PROTOCOL MODES  In point-to-point applications, it is generally desired that the radios operate in a transparent mode.  That is, raw unformatted data is sent from the host to the radio and is received as raw data from the receiving end.  The addressing and error detection and correction are still performed by the radios, but it is transparent to the user application.  To set up a point-to-point network, one radio has to be set up as a base station.  When the radios are powered on, the base station will send out the synchronization signal at the beginning of each hop.  The remote will synchronize with the base and automatically request registration.  Once the remote is registered, the radios can transmit data.  Protocol mode operation is available in point-to-point mode if desired.  If the base station is to be responsible for directing data to a specific remote in point-to-multipoint mode, the data sent to the base station by the user application must adhere to a packet format.  This allows transmissions from the base station to be directed to a specific remote.  Data received by a base station from a remote is similarly formatted to identify to the user application the remote that sent the transmission.  The remotes may still use transparent mode without formatting to send data to the base, if desired.  The WIT910 supports 10 protocol formats that are described in detail below.  The protocol format is selected through the Set Protocol Mode command.  Base and remote radios can use protocol modes to insure that a packet is transmitted to the base without being broken up over multiple hops. The data length value in the data packet becomes the effective minimum packet length and maximum packet length for that packet. Note that if the remote data length is set to a number of bytes that is longer than the number of bytes that can be transmitted by a remote on a single hop, the packet will be discarded. For the base, this value is set by the Set Base Slot Size command. For remotes this value is dynamically available through the Get Maximum Data Length command or may be calculated based on the maximum number of remotes that can ever be registered at one time. See Sections 5.3 and 2.2.3 respectively. Also note that using protocol modes effectively disables Data Transmit Delay. This means that a packet will not be transmitted until the entire packet has been sent to the radio, regardless of the amount of time it takes.  If the remote hosts can determine what data is directed to them in point-to-multipoint mode, the data can be sent to the base station without using a packet format. In this situation, broadcast mode is selected at the base station by using the Set Default Handle and selecting 3FH as the default handle. In this mode, the automatic retransmission of unsuccessful transmissions is disabled. This is required since all of the remote modems will attempt to acknowledge each base transmission when ARQ is enabled. Transmissions that are received with errors are discarded by the radio. The remote devices must be able to detect a missing packet and request a retransmission by the base device.  © 2000- 2004 Cirronet™ Inc  12  M-0910-0000 Rev -
WIT910  Protocol Modes Definitions  mode 00   Transparent mode used for point-to-point networks or multipoint remotes; does not support any packet types.  mode 01   This is the simplest protocol mode supporting Data packets only. This mode is not recommended for base radios. No CONNECT or DISCONNECT packets are supported and no sequence numbers are provided.    packet types supported: Data            mode 02   This mode includes notification when remotes are registered or dropped through CONNECT and DISCONNECT packets that are sent to the user application at the base station and at the remote.  No sequence numbers are provided.    packet types supported: Data        CONNECT        DISCONNECT              modes 03 – 08   reserved for future use.  mode 09   This mode sends the protocol mode 01 packets during transmit but receives data transparently.  mode 0A   This mode sends the protocol mode 02 packets during transmit but receives data transparently. modes 0C – 0F   reserved for future use.  mode 11   This mode sends data transparently but supports protocol mode 1 during reception.  mode 12   This mode sends data transparently but supports protocol mode 2 during reception.  © 2000- 2004 Cirronet™ Inc  13  M-0910-0000 Rev -
WIT910 3.1.  Packet Formats  The byte formats for each packet type are shown in the table below.  Packet fields are organized to fall on byte boundaries.  In the case of bit-level fields, most-significant bits are on the left.  MRTP (WIT910) packet types (modes 01-02):   Transmit and Receive: Base DATA    1110 1001       00HH HHHH   LLLL LLLL   <0-208 bytes data> Remote  DATA   1110 1001   0000 0000   LLLL LLLL   <0-212 bytes data>    Receive only:  CONNECT  1110 1001   10HH HHHH   RRRR TTTT   00NN NNNN   <3 byte remote ID>    DISCONNECT  1110 1001   11HH HHHH   0111 1111        H  :  handle number (0-63)   L   :  data length (0-208 for base, 0-212 for remote)   N  :  remote's previous network number (if roamed)   R  :  receive sequence number (from previous cell)   T  :  transmit sequence number (from previous cell)  Note that while the packet length can be set to 212, the maximum number of bytes transmitted per hop is limited to the lesser of 212 or the length specified by maximum data length. Packets with a data length longer than that will be discarded and not sent. See Get Maximum Data Length for more details.   3.1.1.  Data Packet    Modes 01 & 02:  Base 1110 1001   00HH HHHH   LLLL LLLL   <0-208 bytes data>   Remote  1110 1001   0000 0000   LLLL LLLL   <0-212 bytes data>  This packet carries user data.  The handle number is the handle of the receiving remote. When data is being sent from a remote to the base, no handle number is required. Up to 212 bytes (208 for base radios) of user data may be carried per data packet but no more than is specified by the maximum data length parameter. The radio will not break up a packet over multiple hops. Packets with a data length greater than maximum data length will not be sent and will be discarded. This parameter is variable and depends on the number of remotes currently registered.  Handle 63 is reserved for broadcast packets from the base to all remotes.  Acknowledgment requests are not supported for broadcasts.  For this reason, it is a good idea to send broadcast messages several times to increase the odds of reaching all remotes.  © 2000- 2004 Cirronet™ Inc  14  M-0910-0000 Rev -
WIT910 3.1.3.  Connect Packet    1110 1001   10HH HHHH   RRRR TTTT   00NN NNNN   <3-byte remote ID>  (base, receive only)   H  :  handle number (0-62)   R  :  receive sequence number (from previous cell)   T  :  transmit sequence number (from previous cell)   N  :  network number of the previous base (if roamed)   1110 1001   10HH HHHH   RRRR TTTT   00NN NNNN   <3-byte base ID>  (remote, receive only)   H  :  handle number (0-62)   R  :  receive sequence number    T  :  transmit sequence number   N  :  network number of base  Remotes must go through an automatic registration process when roaming from one base to another, after loss of contact, or when acquiring a base signal for the first time after power up.  The base then assigns the remote a handle value, may or may not assign it a dedicated time slice depending on the user settings, and notifies the user application of the new remote with a connect packet.    The network number of the last base the remote was connected to is given to aid user software in resending orphan packets that may have been sent to the remote's previous cell.  If the remote has been powered up for the first time and this is the first base contacted, the last base ID will be reported as 80H.    3.1.4.  Disconnect Packet  (base only, receive only)   1110 1001   11HH HHHH   0111 1111   H  :  handle number (1-62)  When a remote goes out of range or roams to another cell, the base issues a disconnect packet to indicate that the remote is no longer available. © 2000- 2004 Cirronet™ Inc  15  M-0910-0000 Rev -
WIT910 4.  MODEM INTERFACE  Electrical connection to the WIT910 is made through a 16-pin male header on the modem module.  The signals are 3.3-volt signals and form an RS-232 style asynchronous serial interface.  The table below provides the connector pinout.  Pin Signal Type Description 1  GND  -  Signal and chassis ground 2  TXD  Input  Transmit data.  Input for serial data to be transmitted.  In Control Mode also used to transmit modem commands to the modem. 3  RXD  Output  Receive data.  Output for received serial data.  In Control Mode, also carries receive modem status from the modem. 4    Input  Configuration selector.  Used to switch between Control and Data Modes.  Normally, CFG will be set for Data Mode.  An internal 10K pull-up enables Data Mode if this signal is left unconnected.  Control Mode is also accessible by transmitting an escape sequence immediately after wake up or power up.   (0v)  1 = Control Mode   (3.3v)  0 = Data Mode 5    Input  Request to send.  Gates the flow of receive data from the radio to the user on or off.  In normal operation this signal should be asserted.  When negated, the WIT910 buffers receive data until RTS is asserted.   (0v)  1 = Receive data (RxD) enabled  (3.3v)  0 = Receive data (RxD) disabled. 6  SLEEP  Input  Sleeps/wakes radio transceiver.  In sleep mode all radio functions are disabled consuming less than 50 µA.  At wake up, any user programmed configuration settings are refreshed from non-volatile memory, clearing any temporary settings that may have been set.   (3.3v)  1 = Sleep Radio   (0v)  0 = Wake Radio  7   Output  Data carrier detect.  For remotes, indicates the remote has successfully acquired the hopping pattern of the base station.   (0v)  1 = Carrier detected (synchronized)   (3.3v)  0 = No carrier detected (not synchronized) 8   Output  Clear to send.  Used to control transmit flow from the user to the radio.   (0v)  1 = Transmit buffer not full, continue transmitting   (3.3v)  0 = Transmit buffer full, stop transmitting  9  -  -  Reserved for future use. Do not connect. 10  Input Resets the radio. 11-15  -  -  Reserved for future use. Do not connect. 16  VCC  -  Positive supply.  Min 3.3 v, 5.0 v nominal, 10.0 v max. CFG RTS DCD CTS Reset © 2000- 2004 Cirronet™ Inc  16  M-0910-0000 Rev -
WIT910 4.1.  Interfacing to 5-Volt Systems  The modem interface signals on the WIT910 are 3.3-volt signals.  To interface to 5-volt signals, the resistor divider network shown below must be placed between the 5-volt signal outputs and the WIT910 signal inputs.  The output voltage swing of the WIT910 3.3-volt signals is sufficient to drive 5-volt logic inputs.   2200 Ω  From 5v Output  To 3.3v Input 4300 Ω         4.2   Evaluation Unit and OEM Module Differences  The evaluation unit has an RS-232 transceiver that translates RS-232 level signals to 3.3-volt signals for input into the OEM module inside the evaluation unit. A typical schematic is shown in Appendix 7.5.  The OEM module does not have any type of RS-232 transceiver and cannot handle the RS-232 voltages.  This allows the OEM module to be easily integrated into any 3.3-volt system without any logic signal translation.  In order for the OEM module to function properly several pins need to be driven low or tied to ground.  Pin 5 (RTS) and pin 6 (SLEEP) need to be pulled to ground on the 16-pin male header.  If you have the OEM module interfaced to an RS-232 transceiver, RTS and DTR need to be pulled high on the transceiver side. In the evaluation unit, RTS and DTR are pulled high on the transceiver side so the evaluation unit will work with these signals not connected.   4.3  Three Wire Operation  The WIT910 can be operated in a three wire configuration using just TxD, RxD and Ground. To operate the WIT910 in this configuration, the Sleep and RTS signals must be tied to ground. These signals are pulled up on the WIT910 module and if left disconnected will put the radio into sleep mode and RTS will be deasserted.  The WIT910 does not support software flow control (XON/XOFF). Thus when using a three wire configuration, there is no flow control. The radio configuration and/or the application must insure the transmit and receive buffers do not overflow. The WIT910 has a 512-byte transmit buffer and a 512-byte receive buffer. For example, the default settings for the base slot size and hop duration are 08H and 87H respectively. The 08H base slot size allows the base to send 32 bytes of data per hop. The 87H hop duration provides a 25ms hop dwell time. These default settings provide a base throughput of 19.2 © 2000- 2004 Cirronet™ Inc  17  M-0910-0000 Rev -
WIT910 kbps (Since the over the air transmission is synchronous, the 15.36 kbps synchronous over the air rate is equivalent to 19.2 kbps asynchronous into the radio serial port). If the base transmits continuously at a higher rate than this, unless the default settings are changed, the transmit buffer will eventually overflow. To allow a higher base throughput, either increase the base slot size or the hop duration or both. A similar analysis needs to be performed for the remote radios. Refer to Section 2.2.3 TDMA Mode for the remote throughput calculation.  4.4 Power-On Reset Requirements  The WIT910 has an internal reset circuit that generates and maintains the WIT910 in a reset state until the power supply voltage reaches a minimum of 2.5-volts for 100 milliseconds. This reset circuit protects the radio and non-volatile memory from brown-out voltage conditions. If devices that communicate with the WIT910 have shorter reset periods allowance must be made to allow the WIT910 to come out of reset. Commands and data sent before the WIT910 is out of reset will be ignored.   © 2000- 2004 Cirronet™ Inc  18  M-0910-0000 Rev -
WIT910 5.  MODEM COMMANDS  The WIT910 is configured and controlled through a series of commands.  These commands are sent to the modem directly when the modem is in Control Mode when the modem is in Data Mode if the escape sequence is enabled.  The command syntax is the same for either method, a one- or two-letter command followed by one or more parameters.  The modem will respond with a two-byte message that indicates the new modem parameter value.  The commands are loosely grouped into five different categories: Serial commands, Network commands, Protocol commands, Status commands and Memory commands.  Each command is described in detail below.  In the descriptions, brackets ([,]) are used to denote a set of optional arguments.  Vertical slashes (|) separate selections.  For example, given the string wn[?|0..3f], some legal commands are wn?, wn0, wn3 and wna.  Most commands which set a parameter also have a ? option which causes the modem to respond with the current parameter setting, e.g., wn? Each modem command must be followed by either a carriage return or a line feed.  5.1.  Serial Commands  These commands affect the serial interface between the modem and the host.  The default settings are 9600 bps and protocol mode 0.  Command Description sd[?|02..FF]  Set Data Rate Divisor   Data Rate    Divisor (hex)  2400 bps = 8F  9600 bps = 23  14400 bps = 17  19200 bps = 11  28800 bps = B  38400 bps = 8  57600 bps = 5  115200 bps = 2   sp[?|00..14]  Set Protocol Mode  00   =  point-to-point transparent mode  01   =  basic command and data only  02   =  command, data and connection notification  03 – 08   =  reserved for future use  09   =  mode 01 during transmit, transparent receive  0A   =  mode 02 during transmit, transparent receive  0C – 10   =  reserved for future use  11   =  transparent transmit, mode 01 during receive  12   =  transparent transmit, mode 02 during receive  Set Data Rate Divisor Sets the serial bit rate between the modem and the host.  This command takes effect immediately and will require adjusting the host serial rate to agree.  Nonstandard rates may be programmed by entering a data rate divisor computed with the following formula: © 2000- 2004 Cirronet™ Inc  19  M-0910-0000 Rev -
WIT910 DIVISOR = (345600/RATE)-1 Round all non-integer values down. Note that the new data rate will take effect immediately but will not be stored in non-volatile memory until the m> command is issued. If an error is made in the baud rate setting toggling DTR or cycling power to the WIT910 will cause the previous baud rate to be used.  Set Protocol Mode Enables the base station to operate in a multipoint network.  Depending on the user application, more or less acknowledgment may be desired by the application.  Remotes can operate in transparent mode even though the base station is operating in one of the nontransparent modes.    When using a protocol mode, make sure to count in packet overhead when calculating network performance.  Refer to the section on Protocol Modes for details on each format.  © 2000- 2004 Cirronet™ Inc  20  M-0910-0000 Rev -
WIT910 5.2.  Network Commands  Network commands are used to set up a WIT910 network and to set radio addressing and configuration.  Command Description wb[?|0|1]  Set Transceiver Mode  0 = remote (default)  1 = base station wd[?|1-3f]  Set Default Handle   Used to override automatic handle assignment by the base station  30 = default wg[?|0|1]  Enable Global Network Mode  0 = Link only to hop pattern specified by wn parameter (default)  1 = Link to any hop pattern, regardless of wn parameter wl[?|0-ff]   Set lockout key allowing network segregation beyond network number  0 = default wn[?|0-3f]  Set Hopping Pattern (Network Number)  0 = default wp[?|0|1|2|3]  Set Transmit Power  0 = 10mW   1 = 100mW (default)   2 = 500mW  wr?  Read Receive Signal Strength wu[?|0|1]  Set Point-to-Point Direct Mode   0 = Multipoint mode (default)   1 = Point-to-point direct mode  Set Transceiver Mode  Sets modem operation as either base station or remote.  Default is remote.  Set Default Handle Sets handle number between 1 and 62 inclusive for a remote.  This handle will override the automatic handle assignment by the base station.  This command can be used in applications where it is desired to have specific modems have specific handles. When specified for the base, the default handle determines which remote it will address when transparent protocol mode is in effect. When 3FH is specified for the base, broadcast mode is entered.  © 2000- 2004 Cirronet™ Inc  21  M-0910-0000 Rev -
WIT910 Enable Global Network Mode For networks with multiple base stations, remotes are ordinarily only able to link to one base station, set by the hopping pattern.  Mode 1 enables the global mode that allows remotes to link to any base station they can hear, acquiring whatever hop pattern is required. In this mode a remote can only change base stations once it is no longer registered with a base station.   Set Lockout Key Allows further network segregation beyond the network number. This feature allows multiple co-located networks in which global roaming or seamless roaming is enabled. In global and seamless roaming, a remote is allowed to link to any base regardless of the network number as long as the lockout key agrees. By using different lockout keys, the bases to which remotes link can be limited or segregated.  Set Hopping Pattern The WIT910 has 64 preprogrammed hopping patterns (also referred to as network numbers).  By using different hopping patterns, nearby or co-located networks can avoid interfering with each other’s transmissions.  Even if both networks tried to use the same frequency, on the next hop they would be at different frequencies.    Set Transmit Power The WIT910 has two preset transmit power levels, 10mW (10dBm), 100mW (20dBm) and 500mW (27dBm).  Control of the transmit power is provided through this command.  Default is 100mW.  Read Receive Signal Strength Indicator (RSSI) This command reports the relative signal strength averaged over the last 10 hops.  This command returns a one byte value that is proportional to received signal strength and can range from 00H to FFH.  Typical values range from 30H to 80H where the lower the number the lower the received signal strength and the higher the number the higher the received signal strength.  This is a relative indication and does not directly correspond to a field strength number. This is available only at the remotes as the base station is the only source that transmits on a regular basis.  Plus, in a point-to-multipoint network the base will receive different signal strengths from each remote.  Set Point-to-Point Direct Mode Sets point-to-point mode that is recommended for point-to-point applications, especially where the remote radio is mobile and may leave and re-enter the range of the base. This mode fixes the remote handle assignment to always be 30H and improves the re-registration process. The point-to-point mode must be set in both base and remote radios.  © 2000- 2004 Cirronet™ Inc  22  M-0910-0000 Rev -
WIT910 5.3.  Protocol Commands  These commands can be used to tune the transceiver for optimum transmission of data across the RF link.  For most applications, the default values are adequate.   Command   Description  ph[?|00-fe]    Set Hop Duration   87 = default (=25ms)  pk[?|00-d0]      Set Minimum Data Length  01 = default  pl?  (remote only)    Get Maximum Data Length (read only)  D4 = default (=212 bytes) pn[?|01-3e]  (base only)  Set Maximum Number of Remotes   3e = default (=62 remotes)  pr[?|00-ff]                                     Set Packet Attempts Limit  10H = default  FFH = Infinite retry (RF flow control point-to-point only)  pt[?|00-ff]    Set Data Transmit Delay  00H = default    pv[?|0|1]  (base only) Set Slot Assignment Mode  0 = default (dynamic slot assignment)  1 = static slot assignment pw[?|00-34]  (base only)  Set Base Slot Size  08H = default (=32 bytes) px[?|0|1]  Set ARQ mode.    0  = ARQ enabled (default)  1  = ARQ disabled (redundant transmission) Note: Incorrect setting of these parameters may result in reduced throughput or loss of data packets.     Set Hop Duration Sets the length of time the transceiver spends on each frequency channel.  A smaller value will allow the remote to lock on to the base signal faster at system startup, and will generally decrease packet latency.  A larger value increases network capacity, due to decreased overhead in channel switching.  The hop duration is specified in 185.2µs increments.  The default value of 87H corresponds to a duration of 25ms.  The maximum value of FEH is 47.02ms.  For best results, do not specify a duration of less than 15 ms.   © 2000- 2004 Cirronet™ Inc  23  M-0910-0000 Rev -
WIT910 Set Minimum Data Length  This sets the minimum threshold number of bytes required to form a packet in transparent mode.  The radio will wait until the data transmit delay elapses before sending a data packet with less than this number of bytes.  Can be used to keep short, intermittent transmissions contiguous. In packet modes, the length parameter in the data packet will override this value (See Section 3.1). This value is subject to the maximum data length even in packet mode. See Get Maximum Data Length below.  Get Maximum Data Length (remote only, read only) This parameter indicates the largest number of bytes that a remote will transmit per hop, based on the size of the slot it has been allocated by the base.  In general more remotes mean less data can be transmitted per remote.  By reading this parameter and dividing by the hop duration, the remote's data rate capacity can be determined. Attempting to send protocol mode packets longer than maximum data length will result in the packet being discarded without being sent. See Section 2.3.3 on the tradeoffs between hop duration and data length.  Set Maximum Number of Remotes (base only) This parameter limits the number of remotes that can register with a given base. The default is 62 remotes which is the maximum number of remotes that can be registered with a base at one time. This command is useful when used in conjunction with global roaming for load balancing when base stations are collocated. It is also useful to assure a minimum remote throughput.  Set Packet Attempts Limit If ARQ Mode is set to 0, sets the number of times the radio will attempt to send an unsuccessful transmission before discarding it. If ARQ Mode is set to 1, it is the number of times every transmission will be sent, regardless of success or failure of a given attempt. When this parameter is set to FFH, RF flow control mode is entered for transmissions from the radio (See Section 2.3.4). This mode can be entered for one or both radios in a point-to-point system. When used in a point-to-point system the wu parameter should be set to 1. Using this mode in a point-to-multipoint system will stop transmissions to all radios when any one radio has a full buffer or if the base radio attempts to send data to a remote that has recently (<7 seconds) left the range of the base.   Set Data Transmit Delay When used in conjunction with the minimum data length parameter, this sets the amount of time from the receipt of a first byte of data from the host until the radio will transmit in transparent mode.  Default is 00H which causes transmission to occur without any delay.  When a host is sending a group of data that needs to be sent together, setting this parameter will provide time for the group of data to be sent by the host before the radio transmits.  If the length of data to be sent together is longer than the time slot can send, the data will not be sent together but will be broken up over multiple hops.  The length of time the radio will wait is equal to the specified value times the hop duration.  © 2000- 2004 Cirronet™ Inc  24  M-0910-0000 Rev -
WIT910 Set Slot Assignment Mode (base station only) Sets whether the base station will assign remote transmit slots dynamically, based on the number of remotes currently registered or whether the base station will assign remote transmit slots staticly, based on the maximum number of remotes parameter. If static slot assignment is selected, make sure maximum number of remotes is correctly set. Otherwise remote transmit performance will suffer as transmit time will be reserved for remotes that may not exist. The dynamic assignment mode will generally be preferred; however, the static assignment mode will result in a static maximum data length  parameter.  Set Base Slot Size (base station only) Sets the amount of time allocated for transmission on each hop for the base station time slot in 4-byte increments.  Maximum value is 34H which corresponds to 208 bytes. (34H = 52D x 4 = 208) If using a protocol mode, attempting to send a packet with a length longer than this setting will cause the packet to be discarded.   Set ARQ Mode Sets ARQ mode when set to 0 which is the default.  In this mode the radio will resend an unsuccessful transmission until either successful or packet attempt limit attempts have been made.  When set to 1 selects redundant transmit mode that will send every transmission packet attempt limit times regardless of success or failure of any given attempt. When redundant transmit mode is used, receiving radios will discard all subsequent retransmissions once the transmission has been successfully received. Thus the receiving host will receive just one copy of the transmission.  © 2000- 2004 Cirronet™ Inc  25  M-0910-0000 Rev -
WIT910 5.4.  Status Commands   These commands deal with general interface aspects of the operation of the WIT910.   Command   Description  zb[?|0|1]    Banner Display Disable  0 = disabled  1 = enabled   (default)  zc[?|0..2]    Set Escape Sequence Mode  0 = disabled  1 = once after reset    2 = unlimited times (default) zh?  Read factory serial number high byte. zm?  Read factory serial number middle byte. zl?  Read factory serial number low byte. zp[?|0|2|3|4]  Set the duty cycle at which the modem will wake up to send and receive data.  Duty cycle equals 1/2N where the argument of the command equals N.  z>  Exit Modem Control Mode  Banner Display Disable  Enables or disables display of the banner string and revision code automatically at power-up.  May be disabled to avoid being mistaken for data by the host.  Set Escape Sequence Mode  Enables or disables the ability to use the in-data-stream escape sequence method of accessing Control Mode by transmitting the string ":wit2410".  When this mode is set to 1, the escape sequence only works immediately after reset (this is the default).  When set to 2, the escape sequence may be used at any time in the data stream when preceded by a pause of 20 ms.  For backwards compatibility with the WIT2400, the string ":wit2400" is also accepted for entering Control Mode.  Note that the escape sequence must be interpreted as data by the radio until the last character is received, and as such will be generally be transmitted to a receiving radio station, if any.  Read Factory Serial Number High, Middle and Low Bytes. These read only commands return one of the three bytes of the unique factory-set serial number, which are also visible in the startup banner.  Set Duty Cycle Allows reduced power consumption by having a remote wake up only every 2N hops to receive and transmit.  Power consumption is roughly proportional to the duty cycle selected.  For example, if N=2, the remote will wake up every fourth hop.  Power consumption will be roughly ¼ the consumption as when N=0.  This parameter must be set to the appropriate value when more than 16 remotes are in use.  © 2000- 2004 Cirronet™ Inc  26  M-0910-0000 Rev -
WIT910 5.5.  Memory Commands   The WIT910 allows the user to store a configuration in nonvolatile memory, which is loaded during the initialization period every time the radio is powered up. Note that changes to the serial port baud rate from recalling the factory defaults or recalling memory will not take effect until DTR is toggled or power to the radio is cycled.   Command   Description  m0   Recall Factory Defaults  m<   Recall Memory  m>   Store Memory m!  Display Modified Parameters  Recall Factory Defaults  Resets the WIT910 to its factory default state.  This is useful for testing purposes or if there is a problem in operation of the system and the configuration is suspect.  Use the Store Memory command afterwards if you wish the factory default settings to be remembered the next time you cycle power or reset the radio.  Recall Memory  Useful for restoring the power-on settings after experimenting with temporary changes to data rate, protocol or network parameters, etc.    Store Memory  This command is necessary after any command to change the data rate, transceiver address, or other radio setting that you wish to make permanent. Display Modified Parameters This command lists all parameter settings that are different from the factory default settings. This will list changed parameters whether or not they have been stored with the m> command. Note that issuing this command will cause the radio to lose link with the base and will cause all remotes to lose link when issued to the base radio.   © 2000- 2004 Cirronet™ Inc  27  M-0910-0000 Rev -
WIT910 5.6.  Modem Command Summary  Serial Commands sd[?|02..ff]  Set Data Rate Divisor sp[?|00..14]  Set Protocol Mode  Network Commands wb[?|0|1]    Set Transceiver Mode wd[?|1..3f]   Set Default Handle wl[?|0..ff]   Set Lockout Key wn[?|00..3f]  Set Hopping Pattern wg[?|0|1]    Enable Global Network Modes wp[?|0|1|2|3]  Set Transmit Power wr?      Read Receive Signal Strength   (remote only) wu[?|0|1]   Set Point-to-Point Direct Mode  Protocol Commands ph[?|00..fe] Set Hop Duration    pl?      Get Maximum Data Length    (remote only, read only) pn[?|01..3e]  Set Maximum Number of Remotes  (base only) pk[?|00..d4]  Set Minimum Data Length pr[?|00..ff]  Set Packet Attempts Limit pt[?|00..ff]  Set Data Transmit Delay    (remote only) pv[?|0|1]   Set Slot Assignment Mode    (base only) pw[?|00..34]  Set Base Slot Size      (base only) px[?|0|1]    Set ARQ Mode  Status Commands zb[?|0|1]    Banner Display Disable zc[?|0..2]    Set Escape Sequence Mode zh?     Read Factory Serial Number High Byte zm?     Read Factory Serial Number Middle Byte zl?     Read Factory Serial Number Low Byte zp[?|0..4]    Set Duty Cycle z>      Exit Modem Control Mode  Memory Commands m0   Recall Factory Defaults m<   Recall Memory m> Store Memory m!   Display Changed Parameters  Note: Brackets ([,]) as used here denote a set of optional arguments.  Vertical slashes separate selections.  For example, given the string wn[?|00..3f], legal commands would be wn?, wn0, wn3, and wn2a.  Most commands which set a parameter also have a ? option which displays the current parameter setting; e.g., wn?. © 2000- 2004 Cirronet™ Inc  28  M-0910-0000 Rev -
WIT910 6.  WIT910 DEVELOPER’S KIT  The WIT910 Developer’s Kit contains two self-contained wireless modems (HN-591s) built around the WIT910M OEM module.  In addition, two WIT910M OEM modules are included in the kit.  The self-contained units allow developers to get up and running quickly using standard RS-232 interfaces without having to build a CMOS level serial interface.  In addition, the self-contained modems include status LEDs to provide modem status information visually.  The built-in battery pack allows the developer to use the modems without being tethered to a power source.  This provides a simple way to test the range of the radios.  Other than the true RS-232 signals of the serial interface, the self-contained modems operate exactly as the OEM modules.  Connection is made to the HN-591s through a standard DB-9 connector.  The HN-591s are set up as DCE devices requiring the use of a straight-through cable to connect to DTE devices.  The pinout is provided in Section 7.2.  The modems can be used with just a three wire connection.  Transmit data, receive data and ground are the three required connections.  Note that in this configuration, no flow control is available as the WIT910 does not support software flow control.    When the developer’s kit is shipped from the factory, one HN-591 is set up as a base station and the other is set up as a remote.  The interface rate for both modems is set at 9600 bps.  The default setting for the network key allows the modems to communicate without changing any settings. As a quick test, separate the two modems by about 5 feet, plug in the power and turn the modems on.  Do not connect the modems to any device.  The Carrier Detect (CD) LED on the base station will come on immediately.  After a few seconds, the CD LED on the remote will come on.  This indicates that the modems have synchronized and have established a communications link.    An important point to remember is that if the base station is in Sleep mode, no communications can take place until (1) the base station is taken out of sleep mode and (2) the remote has synchronized with the base station.  As the Sleep signal is brought out on the pin usually occupied by DTR, connecting the base station to a PC serial port with DTR de-asserted will put the modem into sleep mode.  Some communications programs will attempt to communicate immediately after asserting DTR.  The base station will transmit this data, but the remote will not be synchronized with the base station and will not receive the transmission.  In this instance, do not connect the Sleep signal to DTR of the serial port.  © 2000- 2004 Cirronet™ Inc  29  M-0910-0000 Rev -
WIT910  6.1.  WinCOM  Provided with the developer’s kit is a configuration program designed especially for the WIT910. WinCOM is located on the Manuals and Software CD included in the developer’s kit. Install WinCOM by inserting the CD in a computer running Windows 98/XP/ME/2000/NT and follow the installation wizard. If autorun has been disabled, browse to the CD and double-click on setup.exe. Open WinCOM by double-clicking on the WinCOM icon on the desktop. When WinCOM is opened it will prompt for the COM port to use. WinCOM then de-asserts and re-asserts the DTR line to the radio which resets the radio causing the sign-on banner to be displayed. The banner indicates the radio firmware version, whether the radio is operating as a base or a remote and the unique factory serial number of the radio module. If nothing is displayed in the communications window of WinCOM, verify the COM port and baud rate settings. Pressing the F1 key twice will toggle DTR which will reset the radio. Cycling power to the radio also will cause the sign on banner to be displayed. The COM port and baud rate can be changed using the drop down menus on the bottom right. Only the available COM ports will be listed in the menu. If another program that uses a COM port is open, that COM port will not be available for use by WinCOM. © 2000- 2004 Cirronet™ Inc  30  M-0910-0000 Rev -
WIT910 The LEDs on the WinCOM screen provide the status of the COM port being used to communicate with the radio. Note that DCD is only asserted by radios configured as remotes when they are linked to a base radio. Radios configured as bases always assert DCD even if no remotes are linked. Clicking on the DTR or RTS LED will change the state of the respective signal line in the COM port similar to pressing the F1 or F2 function key. The radio is normally in data mode – data that is sent to it from the PC is transmitted over the wireless connection. When the WinCOM window is active, keys typed on the keyboard will be sent to the radio and will be transmitted. Unless the “Echo” box is checked the typed data will not be displayed in the WinCOM window.  To change configuration parameters, the radio must be put into configuration mode by clicking on the Config Mode button on the WinCOM window immediately after opening WinCOM or after cycling power to the radio. Another method is to toggle the DTR by pressing the F1 key twice, which de-asserts then re-asserts DTR, then pressing the F3 key (or Config Mode button). When the radio is in configuration mode, a “>” prompt character is displayed in the WinCom window.  Configuration parameters are sent to the radio by entering them in the WinCom window after the “>” prompt and pressing the Enter key. If an invalid command or value is entered, the radio will respond with “Error.” Until the command to save the parameters is issued, the new parameters will only be valid until power is cycled or DTR is toggled by pressing the F1 key twice.  New parameter values that have been issued are saved to non-volatile memory using the “m>” command. Refer to the Memory Commands section for details on this and other helpful memory commands. To exit configuration mode from the WinCom screen, use the “z>” command and press Enter. The return to the data mode is indicated by an absence of the “>” prompt. Refer to the Configuration Commands section below for details on all the configurable parameters. When the radio is linked to another radio, a communications test can be run by clicking on the Transmit button or pressing the F6 key. Whatever ASCII string is in the Transmit String window will be transmitted. If the other radio is sending data, the received data will be displayed in the WinCOM window. If the Binary box is checked, all characters received will be displayed subject to the limitations of Windows. For example, a carriage return will not return the cursor to the left side of the window but the character corresponding to $0DH value of the carriage return will be displayed.   © 2000- 2004 Cirronet™ Inc  31  M-0910-0000 Rev -
WIT910 All of the function key shortcuts are described below:  F1  Toggles state of DTR (Sleep).  State is shown in status line.  F2  Toggles state of RTS.  State is shown in status line.  F3 Transmits “:wit2400”.  Used to enter control mode. F5  Toggles local echo.  If you are transmitting characters through one modem to another WIT910, this allows you to see what you are typing. F6  Toggles stream mode.  Causes WinCOM to transmit a repeating pattern of characters.  Useful for testing. F8  Toggles binary mode.  Displays extended ASCII and control characters.  Useful for testing. PgUp  Sets data rate of PC serial port to next higher value.  Value is displayed in status line.  Useful when WinCOM is used to change the WIT910 interface data rate.  WinCOM can communicate at new data rate without having to exit and re-enter WinCOM. PgDn  Sets data rate of PC serial port to next lower value.  Value is displayed in status line.  The values of DTR (Sleep), RTS, DSR, CTS, DCD and the PC serial port rate are displayed in the status line at the bottom of the display.  6.1.1 WinCOM Tools There are four useful selections under the Tools menu. The first, Obey CTS/RTS is useful when just a three wire connection is made between the radio and the computer. Some PCs let the CTS input line float. If CTS is not asserted, the PC COM port will not send data. Unchecking this selection will have the PC COM port ignore the state of CTS and transmit data.  When WinCOM’s transmit mode is used, data is sent continuously until the user stops it by clicking on Stop or pressing F6. If Single Transmit is checked, clicking the Transmit button will send the Transmit String a single time. There is no need to click Stop. Clicking on the Transmit button a second time will have the string transmitted a second time.  The Packet Builder is an easy way to test the multipoint addressing mode of the WIT910 radio. Since the WIT910 operates in a star configuration in multipoint mode, only the base radio needs to address data to specific remotes. All remotes send data back to the base and do not need to address the data to the base. To send a packet of data to a specific remote in a multipoint network, enter the handle of the desired remote in the Handle window. Type whatever data to be transmitted in the Data to Transmit window. In the bottom window, you will see the entire packet being built as the data is entered in the windows. When all the data has been entered, click on the Transmit button to send the data.  © 2000- 2004 Cirronet™ Inc  32  M-0910-0000 Rev -
WIT910 WinCOM has the ability to perform any function or sequence of functions WinCOM can perform through a script file. A script file is a text file that contains one or more commands and arguments save with a wcr filename extension. Each command is separated by a carriage return and linefeed. Configuration commands need to have wait periods between them. The list of commands and their definitions is below:  cp <arg>  Selects the COM port to use br <arg>  Selects the baud rate to use do Asserts DTR df De-asserts DTR  ro  Asserts RTS  rf De-asserts RTS cm  Sends configuration escape sequence oo Obey CTS/RTS of  Do not obey CTS/RTS sc <cmd(arg)>  Send WIT910 format configuration command wt <arg>  Pause for arg milliseconds  An example script file is shown below:  br 115200 df wt 200 do wt 200 cm wt 200 sc m!  This script file sets the baud rate of the PC COM that WinCOM is using to 115,200 kbps, de-asserts DTR, waits 200 milliseconds, asserts DTR, waits 200 milliseconds, sends the configuration mode escape sequence, waits 200 milliseconds and then sends the m! command to the radio. What this script file does is set the PC COM port baud rate to 115.2 kbps, puts the radio in config mode and the issues the command to display all of the radio parameters that have been changed from factory default. Note that this script file leaves the radio in config mode. Cycling power or toggling DTR will return the radio to data mode.  WinCOM prompts you to select the desired .wcr file. Opening the script file causes it to executed immediately.   © 2000- 2004 Cirronet™ Inc  33  M-0910-0000 Rev -
WIT910 6.2.  Demonstration Procedure  The procedure below provides a quick demonstration of the WIT910. 1.  Attach a transceiver to each computer, preferably between 5' and 30' apart for convenience.   2.  Start WinCOM running on both computers   If you prefer, almost any other serial communications program such as Procomm or QModem set for 9600 bps will also work. 3.  Turn the radios on and use the function keys to set DTR and RTS to 1  (if you are using a terminal program other than COM24, these are typically set automatically).  The radio should respond by setting both DSR and CTS to 1, and transmit a short sign-on message including the firmware version and whether the unit is configured as a base or remote.  Watch the states of the hardware control lines on the status bar as you do this.  The DCD indicator should be lit on the base station.  After a few seconds, the remote unit will acquire the base station's signal and also assert its DCD signal. 4.  Access modem control mode for each unit.  To access modem control mode, use the F1 key to toggle DTR to 0 and back to 1 and then press the F3 key, which sends the ":wit2400" escape sequence.  If you are not using COM24, simply turn the radio off and back on and then type ":wit2400" (must be lower case, no backspace characters).  The transceiver should echo back “>” to indicate that you have entered modem control mode.    Check the remote unit's hopping pattern by entering "wn?" at the prompt.  The remote should respond with "0", the default setting.  Check that the base station's hopping pattern matches this by entering "wn?" at the base station. 5.  Exit control mode by entering "z>".  Do this for both radios.  At this point, you should be able to type characters into either radio and see them appear at the other side.  If you are using WinCOM, you can press the F6 key to transmit a repeating test pattern. 6.  For a range test, disconnect the remote station from the computer and power supply.  The DCD indicator should remain lit as long as the base station is in range..   7.  Exit COM24 by pressing the ESC key.  © 2000- 2004 Cirronet™ Inc  34  M-0910-0000 Rev -
WIT910 6.3.  Troubleshooting   Radio is not responding. Make sure DTR is asserted to bring the radio out of sleep mode.  DSR should be on to indicate the radio is ready.  Can’t enter modem control mode. Make sure the host data rate is correct.  The WIT910 defaults to 9600 bps asynchronous.  Evaluation units do not have external access to the CFG_SEL signal; you must use the :wit2410 power-on escape sequence to access modem control mode.  The first characters typed after the radio wakes up should be the escape sequence.  Make sure you type the colon (:) and enter the letters in lower case;  the characters following the colon echo to show you have typed them correctly. If using the “on-the-fly” escape sequence command, make sure a pause of at least 20ms precedes the escape sequence.  Remote never detects carrier. Check that the base station is running, and that the remote is programmed to the same hopping pattern.  Also check that the hop duration for base and remote are the same, and that the remote has a non-zero link margin.  Carrier is detected, but no data appears to be received. Make sure that RTS is asserted to enable receive character flow.  In a point-to-point application, if a remote is not receiving data, check that the base's default handle is the same as the remote's.  In a multipoint application, check that the remote is not configured for protocol mode and that the base is using the correct protocol format and destination handle.    Radio is interfering with other nearby circuits.   It is possible for the RF energy envelope to be rectified by nearby circuits that are not shielded for RFI, manifesting as a lower frequency noise signal.  If possible, place the antenna at least 1 foot away from the transceiver module, and 3 feet from other circuit boards and obstructions.  Place sensitive circuits in a grounded metal casing to keep out RFI.  Sign-on banner or modem control mode prompt is unreadable. If the problem is repeatable, check whether the data rates between host and transceiver match.    Range is extremely limited. This is usually a sign of poor antenna coupling.  Check that the antenna is firmly connected.   If possible, remove any obstructions in the near field of the antenna (~3' radius).  Transmitting terminal flashes CTS occasionally. This indicates that the transmitter is unable to reliably get its data across.  This may be the result of an interfering signal, but most often is caused by overloading of the network.  Adjusting the protocol parameters may increase the network efficiency.   © 2000- 2004 Cirronet™ Inc  35  M-0910-0000 Rev -
WIT910  Receiving terminal drops characters periodically. Set the number of retries to a high number and send a few characters.  Check that the transmitted data can get through under these conditions.  Sometimes this symptom is caused by an application that is explicitly dependent on the timing of the received data stream.  The nature of the packetized RF channel imposes a degree of unpredictability in the end-to-end transmission delay.    Cannot communicate with the OEM module. Make sure DTR and RTS are asserted.  DSR should be on to indicate the radio is ready.  OEM Module is in an unknown state. Use the m0 command to restore the factory defaults. Note that the serial baud rate must be known for the module to receive this command.  © 2000- 2004 Cirronet™ Inc  36  M-0910-0000 Rev -
WIT910 7.  APPENDICES  7.1.  Technical Specifications  7.1.1 Ordering Information  WIT910M4  OEM Module, Serial connector pins down - Standard  7.1.2.  Power Specifications  Vcc Input Range:      3.3v to 10.0v (250mW & 500mW require 5.0Vcc) Operating Temperature Range:  -40°C to +70°C  Current Consumption (@5V, max transmit power & 115.2Kbps I/O) Mode Remote Base Station Standby  43mA N/A Typical Average  <100mA 125mA Peak (Tx)  600mA 600mA  7.1.3.  RF Specifications    FCC Certification      Part 15.247, no license required  Rated RF Power   +27 dBm    Line-of-site Range      20+ miles with omni antenna   Frequency Range      902 to 927 MHz   Number of Channels   54 US  Receiver Sensitivity   -100dBm  Channel Data Rate   172.8Kbps   IF Adjacent Channel Rejection  >55dB  7.1.4.  Mechanical Specifications   Weight     35g   Dimensions (including shield)  80.2 x 46.5 x 8.6mm        (refer to section 7.6 for mechanical drawing)  RF Connector:     WIT   Huber/Suhner:  85 MMCX 50-0-1    Mating   Huber/Suhner:  11 MMCX-50-2-3  (straight)       Huber/Suhner:  16 MMCX-50-2-2  (rt. angle)  Data/Power Connector:  WIT   Samtec:  DIS5-108-51-L-D    Mating    Samtec: CLP-108-02-G-D (PCB mount)          Samtec: FFSD-08   (IDC cable)  © 2000- 2004 Cirronet™ Inc  37  M-0910-0000 Rev -
WIT910 7.2.  Serial Connector Pinouts      Signal  WIT910  OEM Pinout HN-591  DB9 Pinout GND 1  5 TXD 2  3 RXD 3  2 CFG 4  - RTS 5  7 SLEEP 6  4 DCD 7  1 CTS 8  8  The HN-591 is wired as a DCE device and as such can be connected to DTE devices such as PCs with a straight-through cable.  When connecting a HN-591 to a DTE device, a “null modem” cable is required.  To effect a null modem cable, cross-wire TXD and RXD and connect ground.  The HN-591 can operate with just these three wires connected.  However, as the WIT910 does not support software flow control, there will be no flow control in this mode.  If the DTE device fails to respond, connect DCD from the HN-591 to the DTR and RTS inputs to activate the DCE device whenever the WIT910 asserts carrier.    When connecting to the WIT910, make sure that all of the inputs (TXD, CFG, RTS and SLEEP) are terminated for proper operation.   7.3.  Approved Antennas  The WIT910 is designed to ensure that no antenna other than the one fitted shall be used with the device.  The end user must permanently affix the antenna by using an adhesive on the coupling such as Loctite, or ensure the antenna has a unique coupling. The table below lists the antennas which can be purchased directly from Cirronet.  Contact Cirronet Technical Support with any questions.  Description Gain Part Number Coupling 9dB Yagi Directional  9dB  YAGI099  Male Rev TNC 6dB Yagi Directional  6dB  YAGI096  Male Rev TNC 5dB Omnidirectional  5dB  OMNI095  Male Rev TNC 2dB Omnidirectional  2dB  OMNI092  Male Rev TNC   © 2000- 2004 Cirronet™ Inc  38  M-0910-0000 Rev -
WIT910 © 2000- 2004 Cirronet™ Inc  39  M-0910-0000 Rev - 7.4.  Technical Support  For technical support call Cirronet™ at (678) 684-2000 between the hours of 8:30AM and 5:30PM Eastern Time.
© 2000- 2004 Cirronet™ Inc  40  M-0910-0000 Rev - 7.5.  Reference Design TXDRTS_3.3VIf using a 5.0V converter use thefollowing circuit for TXD,DTR,RTSDTRDCD_3.3 VDCDV CC 3.3VU5MA X3 238282513165671012212018911826274131415 21917232224C1+C1-C2+C2-R1OUTBT1OUTT2OUTT3OUTT4OUTT5OUTR1OUTR2OUTR3OUTR2INR3INR1INVCCV+V-FORCEONFORCEOFFINVA LID GNDT4INT5INT2INT3INT1INDTR_SLEEP_3.3VRS232 InterfaceD1MBR0520L12CTS_3.3V+C31 uFTXD_3.3VRXDC50.1uF12RXD_3.3 VR110k1 2C10.22uF12+C41 uFWIT2410 InterfaceR16.8k12R26.8k12RTSVCC 3.3VOptional pullups to keepRTS and DTR assertedwhen left unconnectedTXD_3.3VTXD_5VCTS+C21 uFR220k1 243002200WIT910 Interface WIT910
WIT910 7.6.1  Mechanical Drawing – WIT910   © 2000- 2004 Cirronet™ Inc  41  M-0910-0000 Rev -
WIT910 7.7  Warranty  Seller warrants solely to Buyer that the goods delivered hereunder shall be free from defects in materials and workmanship, when given normal, proper and intended usage, for twelve (12) months from the date of delivery to Buyer.  Seller agrees to repair or replace at its option and without cost to Buyer all defective goods sold hereunder, provided that Buyer has given Seller written notice of such warranty claim within such warranty period.  All goods returned to Seller for repair or replacement must be sent freight prepaid to Seller’s plant, provided that Buyer first obtain from Seller a Return Goods Authorization before any such return.  Seller shall have no obligation to make repairs or replacements which are required by normal wear and tear, or which result, in whole or in part,  from catastrophe, fault or negligence of Buyer, or from improper or unauthorized use of the goods, or use of the goods in a manner for which they are not designed, or by causes external to the goods such as, but not limited to, power failure.  No suit or action shall be brought against Seller more than twelve (12) months after the related cause of action has occurred.  Buyer has not relied and shall not rely on any oral representation regarding the goods sold hereunder, and any oral representation shall not bind Seller and shall not be a part of any warranty.  THE PROVISIONS OF THE FOREGOING WARRANTY ARE IN LIEU OF ANY OTHER WARRANTY, WHETHER EXPRESS OR IMPLIED, WRITTEN OR ORAL (INCLUDING ANY WARRANTY OR MERCHANT ABILITY OR FITNESS FOR A PARTICULAR PURPOSE).  SELLER’S LIABILITY ARISING OUT OF THE MANUFACTURE, SALE OR SUPPLYING OF THE GOODS OR THEIR USE OR DISPOSITION, WHETHER BASED UPON WARRANTY, CONTRACT, TORT OR OTHERWISE, SHALL NOT EXCEED THE ACTUAL PURCHASE PRICE PAID BY BUYER FOR THE GOODS.  IN NO EVENT SHALL SELLER BE LIABLE TO BUYER OR ANY OTHER PERSON OR ENTITY FOR SPECIAL, INCIDENTAL OR CONSEQUENTIAL DAMAGES, INCLUDING, BUT NOT LIMITED TO, LOSS OF PROFITS, LOSS OF DATA OR LOSS OF USE DAMAGES ARISING OUT OF THE MANUFACTURE, SALE OR SUPPLYING OF THE GOODS.  THE FOREGOING WARRANTY EXTENDS TO BUYER ONLY AND SHALL NOT BE APPLICABLE TO ANY OTHER PERSON OR ENTITY INCLUDING, WITHOUT LIMITATION, CUSTOMERS OF BUYERS.  © 2000- 2004 Cirronet™ Inc  42  M-0910-0000 Rev -

Navigation menu