MyBinding Standard Autocreaser 33 Parts List User Manual Auto Creaser
2013-06-04
User Manual: MyBinding Standard-Autocreaser-33-Parts-List
Open the PDF directly: View PDF
.
Page Count: 34

70-077
MorganaSystemsLimited UnitedKingdom
Website:www.morgana.co.uk
Telephone: (01908)608888 Facsimile:(01908)692399
ILLUSTRATEDPARTSMANUAL
DOCUMENT
CREASINGMACHINE
AutoCreaser33
ISSUE5 JANUARY2009

NOTE....
ILLUSTRATEDPARTSMANUAL
TheIllustratedPartsManualhasbeendesignedtoassistwhenselectingapartor
assemblywhichmayberequiredtoserviceorrepairyourmachine.
Theindexonpagefourlistsallofthemajorassembliesintheorderinwhichthe
machineisconstructed.
Thefollowingpagedemonstrateshowtorecogniseapartfromasub-assemblyand
showsthequantitycontainedwithinthemajorassembly.
Themajorassemblynumberanddescriptionislistedatthetopofthepageand
shouldalwaysbequotedwhenorderingpartsorwhenseekingtechnicaladvice.
Beforeorderingpartsconfirmthatthemodelnumberofthemachine(listedatthetop
ofpagefour)isidenticaltothenumberstampedonthespecificationplate.
Whilstcheckingthis,makeanoteoftheserialnumberalsostampedontheplate.
Somecomponentswillnotbemadeavailableindividuallyastheyformpartofa
sub-assemblywhichmayrequirespecialisttoolsandknowledgetodismantle.The
machinemaynotperformcorrectlyifattemptsaremadetorepairsub-assembliesof
thistype.
ALWAYSREADTHEOPERATORSMANUALBEFOREMAKINGANY
ADJUSTMENTSTOYOURMACHINEANDALWAYSDISCONNECTTHEPOWER
SUPPLYBEFOREREMOVINGANYCOVERS.
Page2
INTRODUCTION
PAPER
AutoCreaser33

Page3
AutoCreaser33
CREASER

Page4 PAPER
SECTION ASSEMBLY DESCRIPTIONPAGE
17-01-12 MAIN ASSEMBLY 6
27-03-11 FEED BED ASSEMBLY 10
3
4
5
12
NOTE.... TIP....
To assist you in quickly finding
the section you require, there are
numbered tabs positioned down
the outside edges of each page.
7-06-11 CREASER UNIT
CONTENTS
720820
22
7-08-14 STACKERASSEMBLY
24
720820 FINALASSEMBLY

Page5
CREASER
AutoCreaser33
BLANK
PAGE

Page6 PAPER
MAINASSEMBLY
7-01-12
23
15
20
29
41
44
11
22
43
27
18
27
10
31
37
30
4off
28 35 46
2off2off
14
30
2off
21
51
21
21
16
4off
31
13
30
2off
36
4off
34
37
43
384745
2off 2off 2off
3off
19
17
9
11
22
44
41
23
84
4248 4off
731
2off
3
39 1
2off
6 2 26
4off
4off 8off
5
33
in 2Posns.
23
40
3off
49
33
33
33
4Posns.
24
4off
4off
33
12
2off
3225
SEEPAGE8
50
SMALLHOLE
LARGEHOLE

7-01-12
MAINASSEMBLY
AutoCreaser33
Page7
CREASER
ITEMNo. PARTNo. QTY. Description
171-002-03 2TieBar-Autocreaser33
271-005 4SupportSpool
371-010 1PivotBush
4
5
71-013-02 1TILTLEVER-MK2.
6
71-015 2Pad
7
71-016 4ShockSleeve
8
71-018-02 1PLATE-Blanking-AutoCreaser.
9
10
11
71-051-01 1MAINFRAME-AutoCreaserMk3.
12
71-054-01 1PLINTH-AutoCreaser33.
13
71-055-01 2WHEELCOLLAR
14
75-202-01 1BAFFLEPLATE-AutoCreaser33.
15
75-208-01 1TowerBlank-OpSide
16
75-208-02 1TowerBlank-LaySide
17
75-229-02 1FanGuardAssy-AutoCreaser33.
18
75-254-02 4HEXPILLAR-FanSpacer-M4
19
91-005 1Axle-Wheels
20
91-006-05 1WHEELTUBE-Op.Side-AutoCreaser50.
21
91-006-06 1WHEELTUBE-LaySide-AutoCreaser50.
22
91-024-03 1FANADAPTER-Compressor-SV130.
23
91-025 3BUNG-Compressor.
24
25
601-015 3SnapBushingØ33.3xØ38
26
27
28
615-014 8CIRCLIP-External-Ø15
29
617-008 2Wheel-Ø100
30
31
621-025 1FAN-PLASTIC5BLADE6"CCW
32
621-029 1BLOWER-SV130.
33
401-02-040-006 8Screw-PanPoziTaptite-M4x6Lg.
34
401-02-040-008 9Screw-PanPoziTaptite-M4x8Lg.
35
402-02-040-006 7Screw-CskHd.Taptite-M4x6Lg.
36
402-02-040-008 1Screw-CskHd.Taptite-M4x8Lg.
37
403-01-050-025 2SCREW-SocketCapHead-M5x25Lg.
38
403-01-060-010 4SCREW-SocketCapHead-M6x10Lg.
39
403-01-060-020 2SCREW-CapHd.-M6x20Lg.
40
404-01-060-012 2SCREW-SocketCskHead-M6x12Lg.
41
405-01-060-012 1SCREW-SocketButtonHead-M8x16Lg.
42
405-01-080-010 2SCREW-SocketButtonHead-M8x10Lg.
43
405-01-080-016 4SCREW-SocketButtonHead-M8x16g.
44
405-01-080-080 2SCREW-SocketButtonHead-M8x50Lg.
45
409-01-040-006 2Screw-SktSetScrew-FlatPt.-M4x6Lg.
46
461-01-060 2NUT-Full-M6
47
481-050 2WASHER-Plain-M5
48
481-060 2WASHER-Plain-M6
49
481-080 4WASHER-Plain-M8
71-052-02 1AXLE-AutoCreaser33.
62-006 2NYLONWHEEL
601-153 1SnapBushingØ46xØ57.2
603-041 4SPIROLSPACERØ4xØ5.65x4Lg.
401-02-040-010 4Screw-PanPoziTaptite-M4x10Lg.
403-01-060-016 3SCREW-SocketCapHead-M6x16Lg.
75-291-02 1CONTROLLEGASSY.-Autocreaser33
48
49
481-080 4WASHER-Plain-M8
75-291-02 1CONTROLLEGASSY.-Autocreaser33
50 71-01-01 1SV130ADAPTORASSY
91-025-06 1BUNG-Compressor-Ø40Bore51

Page8 PAPER
MAINASSEMBLY
7-01-12

Page9
CREASER
AutoCreaser33
BLANK
PAGE

Page10 PAPER
FEEDBEDASSEMBLY
7-03-11
34 41
10 11
13
1239 401168
3645
31
4
14
25
5
21 35
32
33 34
41
7
6
2623
2off
6off
11off
17
27
29
16
2off
2off
2
37
44
29
44
44
32
20
15
19
18
16
35
30 28 24
3
322
38
2off

Page11
CREASER
AutoCreaser33
7-03-11
FEEDBEDASSEMBLY
ITEMNo. PARTNo. QTY. Description
128-003 1UNIVERSALKNOBASSY-M6x25Lg.-Black-Ø16
251-095 1ClampWasher
373-004 2KeyHoleLatch
473-009 1FOAMBEDSPACER-AutoCreaser.
573-012-02 1BELTSUPPORT-AutoCreaser50.
673-051-02 1FEEDFRAME-AutoCreaser33.
773-052-02 1MANIFOLDPLATE-AutoCreaser33.
873-054-01 1SUPPORTPLATE-AutoCreaser50
10 93-004 1AirDistributionTube
11 93-005 1Knob-AirDistribution
12 93-014-04 1CHOKESHAFT-AutoCreaser33
13 93-015 1LockingSpool
14 93-021 1FeedBelt
15 93-022 1VacuumRollerDriveBelt
16 93-023 4Shield-SelfAligningBallRace
17 73-03-01 1ManifoldTubeAssy
18 93-030-02 1VacuumRollerAssy-Slotted
19 93-031 1FeedDrumAssy-Idler
20 93-032 1FeedDrumAssy-Drive
21 93-033-02 1SupportBracket-ControlBed-M3
22 93-037 1Extension-LoadingTable
23 601-088 1SpringPlunger-PressIn
24 604-060 1Washer-Waved-Ø25.5XØ19X3
25 604-062 1Washer-Waved-Ø35.5XØ43.5X0.4
26 605-004 2ThrustWasher-Ø8xØ15.88x0.79
27 609-011 1'O'RingØ20xØ3
28 609-014 1'O'RingØ15xØ3
29 615-035 2MetricPush-inFix
30 615-040 1RetainingRing-External-Ø25
31 401-02-040-006 1Screw-PanPoziTaptite-M4x6Lg.
32 401-02-040-008 6Screw-PanPoziTaptite-M4x8Lg.
33 401-02-040-016 11 Screw-PanPoziTaptite-M4x16Lg.
34 402-02-040-008 2Screw-CskHd.Taptite-M4x8Lg.
35 402-02-040-016 2Screw-CskHd.Taptite-M4x16Lg.
36 403-01-040-008 2Screw-SocketCapHead-M4x8Lg.
37 403-01-060-012 1Screw-SocketCapHead-M6x10Lg.
38 405-01-060-006 2Screw-ButtonHd.-M6x6Lg.
39 405-01-060-010 1Screw-ButtonHd.-M6x10Lg.
40 408-01-050-030 1ScrewSktConePt-M5x30Lg.
41 409-01-040-012 2Screw-SocketSet-FlatPoint-M4x12Lg.
44 461-01-060 3Nut-Full-M6
45 481-040 2Washer-Plain-M4

Page12 PAPER
CREASERUNIT
7-06-11
4
2
3
5
5
3
1
SEEPAGES14to21

Page13
CREASER
AutoCreaser33
7-06-11
CREASERUNIT
ITEMNo. PARTNo. QTY. Description
17-06-12 1CREASINGUNITASSY.
276-040-02 1CordPulley-Drive
376-053-02 2HINGEPILLAR
4608-001 1ShoulderBolt-Ø8(M6)x20Lg.
5481-080 2Washer-Plain-M8

Page14 PAPER
CREASERUNIT
7-06-11
61
2
5
3
427 28 6
26
66
14
21
13
51
17 18 14 18
20
10
23
24 29 815
7
40
40
78
15
10 22
9
52
54
31
52
54
32
52
54
32
52
54
SEEPAGE19
SEEPAGE18
SEEPAGE20
25
53 19
53 2off

Page15
CREASER
AutoCreaser33
7-06-11
CREASERUNIT
ITEMNo. PARTNo. QTY. Description
176-250-01 1UpperOutputShaftAssy
276-251-01 1LowerOutputShaftAssy
376-04-01 1SplashGuardAssy
476-05-01 1IdlerGearAssy
576-06-01 1CrankShaftAssy
676-003 4TIEBAR-AutoCreaser.
776-011 2BLADEADJUSTMENTCAM.
876-012 2ADJUSTMENTDISK-AutoCreaser
976-034-06 1TIMINGPULLEY-16XL-ShortHub.
10 76-047 2LOCKNUT-BladeCam.
13 76-062-04 1STEPPERPINION-20TAutoCreaser50
14 76-065 2STEPPERSHIM
15 76-101 1LABEL-BladeAdjustment.
17 76-121-01 1MTG.PLATE-StepperMotor.
18 76-122-01 2TIEBAR-Female.
19 76-123-01 1TIMINGPULLEY-20XL-WideFlanged.
20 76-142-04 1SIDEPLATE-LaySide-Mk3.
21 76-142-05 1SIDEPLATE-AC33Op.SideMk3
22 76-166 1LEAD-PaperJamSensor.
23 76-167 1LEAD-DualSensorAssy.
24 76-168 1LEAD-PaperGuideSensor
25 76-172 1BLADEMOTOR&LEADASSY.
26 76-173 1DRIVEMOTOR&LEADASSY.
27 76-175-01 1INPUTROLLERASSY.-Lower
28 76-177-01 1INPUTROLLERASSY.-Upper
29 76-213-01 1BLADESET-320WideStd.Groove.
31 56-003-02 1TIMINGPULLEYWide-16XL-Flanged.
32 56-004-02 2TIMINGPULLEY-16XL-Un-Flanged.
40 608-019 2ShoulderBolt-Ø12(M10)x30Lg.
51 407-01-050-006 1Screw-SocketSetKnurled-M5x6Lg.
52 409-01-040-004 4Screw-SocketSet-FlatPoint-M4x4Lg.
53 409-01-050-005 3Screw-SocketSet-FlatPoint-M5x5Lg.
54 411-01-040-006 4Screw-SocketSet-DogPoint-M4x6Lg.

Page16 PAPER
CREASERUNIT
7-06-11
16 35 57
46
45
50
33
41
38
47
39
37 36
16 30 30
33 34 34
35
36
36
36
37
37
37
37
37
37
37
3737
37
3737
41
41 42
43 44
12
60
5659
59 56
In8Posns.
45
485558
In3Posns. 58 49 59
In2Posns.
48
55
58
2off
In4Posns.
56 59
49 59
45
44
In2Posns.

Page17
CREASER
AutoCreaser33
7-06-11
CREASERUNIT
ITEMNo. PARTNo. QTY. Description
12 76-054-03 1TILTPILLAR-AutoCreaserMK3
16 76-105 2BUFFER-ExitGuard.
30 78-013 2PERFORATORSTRIPPERASSEMBLY.
33 601-124 2HOLEBUSHING-Split-Ø19.
34 602-003 2BEARING-DeepGrooveBall-6001-ZZ
35 603-046 2SpirolPin-Ø4x12Lg.
36 604-071 4WavedWasher-Ø21xØ27.5x3.0
37 605-052 12 SUPPORTWASHER-Ø12
38 607-042 1TIMINGBELT-160XL-15.
39 607-048 1TIMINGBELT
41 613-027 3TIEWRAP-Small.
42 613-339 1CABLETIEMOUNTING
43 651-031 1TERMINALSTRIP-45°-Single
44 401-02-040-006 3Screw-PanPoziTaptite-M4x6Lg.
45 401-02-040-008 28 Screw-PanPoziTaptite-M4x8Lg.
46 401-02-040-016 4Screw-PanPoziTaptite-M4x16Lg.
47 403-01-050-016 1Screw-SocketCapHead-M5x16Lg.
48 403-01-050-025 7Screw-SocketCapHead-M5x25Lg.
49 403-01-080-020 7Screw-SocketCapHead-M8x20Lg.
50 405-01-080-020 1Screw-ButtonHd.-M8x20Lg.
55 461-01-050 7Nut-Full-M5
56 461-01-080 9Nut-Full-M8
57 462-01-080 1HalfNut-M8
58 481-050 15 Washer-Plain-M5
59 481-080 16 Washer-Plain-M8
60 481-100 1Washer-Plain-M10

Page18 PAPER
CREASERUNIT
7-06-11

Page19
CREASER
AutoCreaser33
7-06-11
CREASERUNIT

Page20 PAPER
CREASERUNIT
7-06-11

Page21
CREASER
AutoCreaser33
7-06-11
CREASERUNIT

STACKERASSEMBLY
7-08-14
Page22 PAPER
15
6 7
3
4
2
In2Posns.

AutoCreaser33
7-08-14
STACKERASSEMBLY
Page23
CREASER
ITEMNO.PARTNo.QTY.Description
178-017-02 1StackerBed-Autocreaser33
278-067-011StackerSideGuide-R/H-Slotted
378-068-01 1StackerSideGuide-L/H-Slotted
478-069-011StackerBackStop-R/H-Slotted
578-070-011StackerBackStop-L/H-Slotted
678-071-011ActuatorAssy.-Stacker
7402-02-050-0102Screw-CskHd.Taptite-M5x10Lg.

Page24 PAPER
FINALASSEMBLY
720820
45
17
7
8
41
36
4
5off
11
2off 2off 2off
2off
2off
43 49 58 57
33
30
5
3
32
15
1
12 44
1348
11off
1048
2off
47
16
52
251
2off
3off
SEEPAGE29
62
63

Page25
CREASER
AutoCreaser33
FINALASSEMBLY
720820
ITEMNo. PARTNo. QTY. Description
17-01-12 1MAINASSY.-AutoCreaser50.
27-03-11 1FEEDBEDASSY-AutoCreaser33.
37-06-11 1CreasingUnitAssy-Autocreaser33
47-08-14 1SlottedStackerAssy-AC33
571-011 1HINGEPLATE-AutoCreaser.
771-020 1LOCKINGSTUD-Clamp
871-025 1TiltWasher
10 74-001-03 1FEEDBED-AutoCreaser33.
11 74-002-02 1CONTROLBED-AutoCreaser50.
12 74-003 1BALLHOLDER-AutoCreaser.
13 74-050-01 1LoadingTable-AutoCreaser33.
15 75-205-01 1TopCover-ServicePanel
16 75-210-05 14LineDisplayUnit-MK3
17 75-224-02 1LABEL-Autocreaser33.
30 94-082 1PAPERGATEASSEMBLY-Round.
32 75-335 1LABEL-AirSeperation
33 95-038 1LABEL-ManifoldNumbrs.
36 96-060 1LABEL-Lock
41 606-035 1LOBEKNOB-Female-M8
43 613-351 1MICROSWITCH
44 617-003 5STEELBALL-Ø20
45 401-02-040-008 25 Screw-PanPoziTaptite-M4x8Lg.
47 401-02-050-020 2Screw-PanPoziTaptite-M5x20Lg.
48 402-02-030-008 13 Screw-CskHd.Taptite-M3x8Lg.
49 403-01-030-016 2SCREW-SocketCapHead-M3x16Lg.
51 405-01-060-010 2Screw-ButtonHd.-M6x10Lg.
52 405-01-060-012 2SCREW-SocketButtonHead-M6x12Lg.
57 461-01-030 2NUT-Full-M3
58 481-030 2WASHER-Plain-M3
62 123-059 1LABEL-SafetyWarnings
63 75-387 1LABEL-FuseRatings

Page26 PAPER
FINALASSEMBLY
720820
18
14 45
46
20
29
28
38
27
926
54
37 3545 54
25 6 45
40 24
53 39
in 2Posns.
23
22 55
2off
7off
21 19
42
42
45
2off
in 2Posns.
4off
2off 2off 2off
in 2Posns.
in 2Posns.
in 2Posns.
34 50
31 61
2off
2off
56 59
in 3Posns.
SEEPAGE30
SEEPAGE32
SEEPAGE31
60
SEEPAGE28FORHOSERUNS&HOSEPARTNUMBERS

Page27
CREASER
AutoCreaser33
FINALASSEMBLY
720820
ITEMNo. PARTNo. QTY. Description
671-012-02 2COVERBRACKET-Mk2.
9
74-01-01 1MovingSidelay-Metric-Autocreaser33
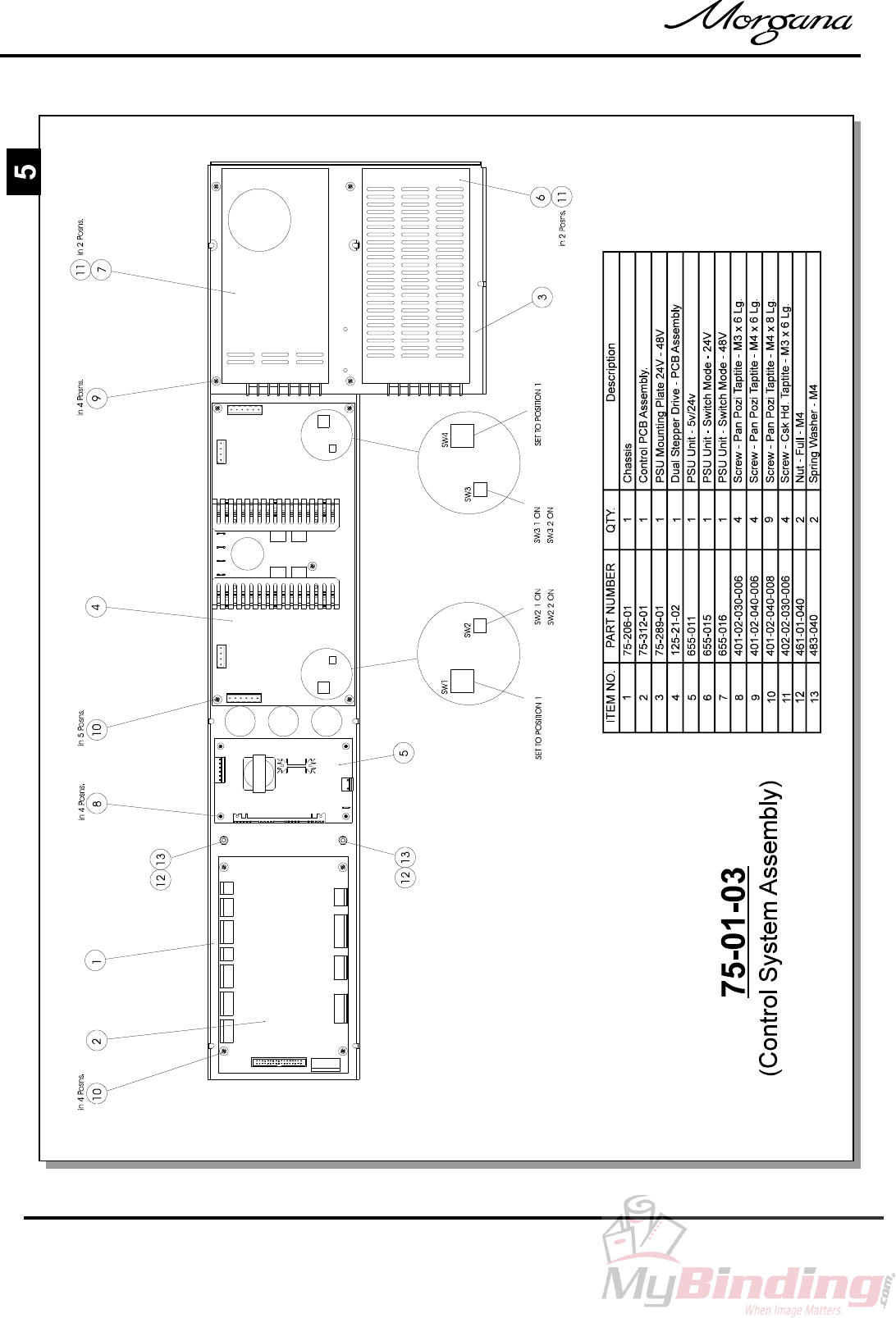
14 75-01-03 1ControlSystemAssy.Autocreaser33
18 75-242-01 1SERVICEPANEL
19 75-255 1DINSocketAssy.
20 75-293-01 1COMPRESSORPANEL-AutoCreaser33.
21 75-333-01 1EMCBLANKINGPLUG-Eng.Socket.
22 76-041 1CORDPULLEY-Driven.
23 76-042 1DRIVEBELT-FeedBed.
24 76-049-04 1HingeShaft-Wide
25 76-050-05 1EntryGuardAC33
26 76-051 1EXITGUARD-AutoCreaer.
27 94-026 2CLAMPKNOB-Sidelay.
28 94-028 2LOCKPINASSEMBLY.-SideLay.
29 94-058 1BACKSTOPASSY.
31 73-01-02 1
PlungerValveAssembly
34 73-02-01 1SuctionValveAssy.
35 96-053 1Label-RollerTilt
37 601-111 1TaperedFerrule
38 605-043 2THRUSTWASHER-Ø5.1xØ9.5x0.75
39 605-055 2WASHER-SelfAligning
40 605-056 2THRUSTWASHER-Ø12.7xØ8.00x0.81
42 609-013 2'O'RingØ25xØ2.5
45 401-02-040-008 25 Screw-PanPoziTaptite-M4x8Lg.
46 401-02-040-010 7Screw-PanPoziTaptite-M4x10Lg.
50 403-01-050-035 2SCREW-SocketCapHead-M5x35Lg.
53 405-01-080-016 2SCREW-SocketButtonHead-M8x16g.
54 406-01-040-006 6SCREW-Tamperproof-M4x6Lg
55 409-01-050-005 2Screw-SocketSet-FlatPoint-M5x5Lg.
56 415-01-080-012 3Screw-HexagonHead-M8x12Lg.
59 481-080 3Washer-Plain-M8
60 613-255 1SolenoidCoil
61 401-02-050-012 2Screw-PanPoziTaptite-M5x12Lg.
74-01-02 1MovingSidelay-Imperial-Autocreaser33
74-01-03 1MovingSidelay-French-Autocreaser33
74-01-04 1MovingSidelay-German-Autocreaser33

Page28 PAPER
FINALASSEMBLY
720820
75-336-01
75-337-01
75-338-01
75-339-01
INTERNALVIEWSHOWINGHOSERUNS&HOSEPARTNUMBERS

12 113
3
7
2
11
17
10
6
14
15
9
18
16
8
54
604-078 1Spring-Compression
12
13
94-020 1Knob-Papergate
ITEMNO. PARTNUMBER QTY. Description
1
74-011
1
Spindle-Papergate
274-010
1
PapergateChassis
3
94-021 1Label-Papergate‘UP’
4
94-059 1SupportPost
5
602-057 1DUBush-Ø12xØ14xØ20x7Long
6
604-037 1DiscSpring-BearingLocation
7
605-041 1SphericalSeatingWasher
8
604-061 1Spring-Compression
9
404-01-050-012
1
10
401-02-050-020 1
Screw-SocketCountersunk-M5x20Lg.
11
603-050 1Dowel-Ø6x28Lg.
461-01-100 1Nut-Full-M10
17
18
48-005 1RotaryPaperGate
409-01-040-006 1
Screw-PanHd.Pozi-M5x20Lg.
14
481-050
1
Washer-Plain-M5
15
481-100 1Washer-Plain-M10
16
Screw-SocketSet-FlatPoint-M4x6Lg.
94-082
(PapergateAssembly)
Page29
CREASER
AutoCreaser33
FINALASSEMBLY
720820

FINALASSEMBLY
720820
Page30 PAPER

2
1
5
4
3
73-01-02
(PlungerValveAssembly)
7
6
8
ITEMNo. PARTNo. QTY. Description
171-056-01 1SLIDINGVALVEPLATE
271-057-01 1VALVEGUIDEPLATE
3 71-060-02 1 VALVEPLATEKNOB
4601-160 1SPRINGPLUNGER-PRESSIN
5604-093 1SPRING-EXTENSION
6605-021 1THRUSTWASHER-Ø8xØ15.88x0.79
7409-01-060-025 1SCREW-SOCKETSET-FLATPT.-M6x25LG.
8464-01-060 1NUT-NYLOC-M6
AutoCreaser33
FINALASSEMBLY
720820
Page31
CREASER

73-02-01
(SuctionValveAssembly)
ITEMNo. PARTNo. QTY. Description
195-011 1SOLENOIDVALVESEAT(50Hz)(UK).
295-012 1SOLENOIDVALVEBLOCK
3613-136 1TUBE&NUTASSY.
4613-137 1SPRING&PLUNGERASSY.-Mk2.
571-061-01 1VALVEBLOCKPORTADAPTOR
3
2
4
1
5
FINALASSEMBLY
720820
Page32 PAPER
95-136 1SOLENOIDVALVESEAT(60Hz)(USA).

AutoCreaser33
Page33
CREASER
