Napoleon Fireplaces Quality Gd80Nt Users Manual W415 0447_GD80.pmd
GD80PT to the manual 57b5044c-91e7-47a0-a7d9-8e86b96504f2
2015-02-05
: Napoleon-Fireplaces Napoleon-Fireplaces-Napoleon-Quality-Fireplaces-Gd80Nt-Users-Manual-493333 napoleon-fireplaces-napoleon-quality-fireplaces-gd80nt-users-manual-493333 napoleon-fireplaces pdf
Open the PDF directly: View PDF .
Page Count: 28

1
W415-0447 / B / 05.24.05
W415-0447 / B / 05.24.05

2
W415-0447 / B / 05.24.05
WHAT TO DO IF YOU SMELL GAS
WARNINGS & SAFETY PRECAUTIONS

3
W415-0447 / B / 05.24.05
PG2-6 INTRODUCTION
Warnings and Safety Precautions
Warranty
Dimensions
General Instructions
General Information
Care of Glass & Plated Parts
6-11 VENTING
Vent lengths
Venting Specifications
Air Terminal Locations
12-17 INSTALLATION/FRAMING
Wall & Ceiling Protection
Using Flexible Vent Components
Fireplace Vent Connection
Using Rigid Vent Components
Gas Installation
Restricting Vertical Vents
Framing
Clearance to Combustibles
Mantle Clearances and Enclosures
17 ELECTRICAL CONNECTION
Schematic
18-20 FINISHING
Door Removal
Log Shipping Bracket Removal
Log Placement
Baffle Installation
Charcoal Embers
Lamp Replacement
20 BLOWER REPLACEMENT
21 REMOTE AND VALVE ACCESS
Remote Removal
Valve Removal
22-24 OPERATION / MAINTENANCE
Fireplace Operation
Hand Held Remote Operation
Operating Instructions
Maintenance
24 ADJUSTMENTS
Pilot Burner Adjustment
Venturi Adjustment
Air Control Rod Access
25-26 REPLACEMENTS
Ordering Replacement Parts
Replacement Parts
Terminal Kits
Vent Kits
Accessories
27-28 TROUBLE SHOOTING GUIDE
WARNING
• Do not burn wood or other materials in this fireplace.
• Adults and especially children should be alerted to the hazards of high surface temperatures and should stay away to
avoid burns or clothing ignition. Supervise young children when they are in the same room as the fireplace.
• Due to high temperatures, the fireplace should be located out of traffic and away from furniture and draperies.
• Clothing or other flammable material should not be placed on or near the fireplace.
• Any safety screen or guard removed for servicing must be replaced prior to operating the fireplace.
• It is imperative that the control compartments, burners and circulating blower and its passageway in the fireplace and
venting system are kept clean. The fireplace and its venting system should be inspected before use and at least
annually by a qualified service person. More frequent cleaning may be required due to excessive lint from carpeting,
bedding material, etc. The fireplace area must be kept clear and free from combustible materials, gasoline and other
flammable vapours and liquids.
• Under no circumstances should this fireplace be modified.
• This fireplace must not be connected to a chimney flue pipe serving a separate solid fuel burning appliance.
• Do not use this fireplace if any part has been under water. Immediately call a qualified service technician to inspect the
fireplace and to replace any part of the control system and any gas control which has been under water.
• Do not operate the fireplace with the glass door removed, cracked or broken. Replacement of the glass should be
done by a licensed or qualified service person.
• Do not strike or slam shut the fireplace glass door.
• This fireplace uses and requires a fast acting thermocouple. Replace only with a fast acting thermocouple supplied by
Wolf Steel Ltd.
NOTE: CHANGES, OTHER THAN EDITORIAL, ARE DENOTED BY A VERTICAL LINE IN THE MARGIN.
TABLE of CONTENTS
PLEASE RETAIN THIS MANUAL FOR FUTURE REFERENCE

4
W415-0447 / B / 05.24.05
ALL SPECIFICATIONS AND DESIGNS ARE SUBJECT TO CHANGE WITHOUT PRIOR NOTICE DUE TO ON-GOING PRODUCT IMPROVEMENTS. NAPOLEON® IS A REGISTERED
TRADEMARK OF WOLF STEEL LTD. PATENTS U.S. 5.303.693.801 - CAN. 2.073.411, 2.082.915. © WOLF STEEL LTD.
NAPOLEON gas fireplaces are manufactured under the strict Standard of the world recognized
ISO 9001 : 2000 Quality Assurance Certificate.
NAPOLEON products are designed with superior components and materials, assembled by trained craftsmen
who take great pride in their work. The burner and valve assembly are leak and test-fired at a quality test station.
The complete fireplace is thoroughly inspected by a qualified technician before packaging to ensure that you, the
customer, receives the quality product that you expect from NAPOLEON.
NAPOLEON GAS FIREPLACE PRESIDENT'S LIFETIME LIMITED WARRANTY
The following materials and workmanship in your new napoleon gas fireplace are warranted against defects for as long as
you own the fireplace. This covers: combustion chamber, heat exchanger, stainless steel burner, PHAZER™ logs and
embers, ceramic glass (thermal breakage only), gold plated parts against tarnishing, porcelainized enamelled components
and aluminum extrusion trims.
Electrical (110V and millivolt) components and wearable parts such as the blower, gas valve, thermal switch, switches,
wiring, remote control, ignitor, gasketing, and pilot assembly are covered and NAPOLEON will provide replacement parts
free of charge during the first year of the limited warranty. Light bulbs are not covered by this warranty.
Labour related to warranty repair is covered free of charge during the first year. Repair work, however, requires the prior
approval of an authorized company official. Labour costs to the account of NAPOLEON are based on a predetermined rate
schedule and any repair work must be done through an authorized NAPOLEON dealer.
CONDITIONS AND LIMITATIONS
NAPOLEON warrants its products against manufacturing defects to the original purchaser only -- i.e., the individual or legal entity (registered customer)
whose name appears on the warranty registration card filed with NAPOLEON -- provided that the purchase was made through an authorized NAPOLEON
dealer and is subject to the following conditions and limitations:
This factory warranty is nontransferable and may not be extended whatsoever by any of our representatives.
The gas fireplace must be installed by a licenced, authorized service technician or contractor. Installation must be done in accordance with the installation
instructions included with the product and all local and national building and fire codes.
This limited warranty does not cover damages caused by misuse, lack of maintenance, accident, alterations, abuse or neglect and parts installed from
other manufacturers will nullify this warranty.
This limited warranty further does not cover any scratches, dents, corrosion or discolouring caused by excessive heat, abrasive and chemical cleaners nor
chipping on porcelain enamel parts, mechanical breakage of PHAZER™ logs and embers, nor any venting components used in the installation of the
fireplace.
NAPOLEON warrants its stainless steel burners against defects in workmanship and material for life, subject to the following conditions: During the first 10
years NAPOLEON will replace or repair the defective parts at our option free of charge. From 10 years to life, NAPOLEON will provide replacement burners
at 50% of the current retail price.
In the first year only, this warranty extends to the repair or replacement of warranted parts which are defective in material or workmanship provided that the
product has been operated in accordance with the operation instructions and under normal conditions.
After the first year, with respect to this President's Limited Lifetime Warranty, NAPOLEON may, at its discretion, fully discharge all obligations with respect
to this warranty by refunding to the original warranted purchaser the wholesale price of any warranted but defective part(s).
After the first year, NAPOLEON will not be responsible for installation, labour or any other costs or expenses related to the reinstallation of a warranted
part, and such expenses are not covered by this warranty.
Notwithstanding any provisions contained in this President's Limited Lifetime Warranty, NAPOLEON’S responsibility under this warranty is defined as
above and it shall not in any event extend to any incidental, consequential or indirect damages.
This warranty defines the obligations and liability of NAPOLEON with respect to the NAPOLEON gas fireplace and any other warranties expressed or
implied with respect to this product, its components or accessories are excluded.
NAPOLEON neither assumes, nor authorizes any third party to assume, on its behalf, any other liabilities with respect to the sale of this product. NAPO-
LEON will not be responsible for: over-firing, downdrafts, spillage caused by environmental conditions such as rooftops, buildings, nearby trees, hills,
mountains, inadequate vents or ventilation, excessive venting configurations, insufficient makeup air, or negative air pressures which may or may not be
caused by mechanical systems such as exhaust fans, furnaces, clothes dryers, etc.
Any damages to fireplace, combustion chamber, heat exchanger, brass trim or other component due to water, weather damage, long periods of damp-
ness, condensation, damaging chemicals or cleaners will not be the responsibility of NAPOLEON.
The bill of sale or copy will be required together with a serial number and a model number when making any warranty claims from your authorized dealer.
The warranty registration card must be returned within fourteen days to register the warranty.
NAPOLEON reserves the right to have its representative inspect any product or part thereof prior to honouring any warranty claim.

5
W415-0447 / B / 05.24.05
Purge all gas lines with the glass door of the fireplace open.
Assure that a continuous gas flow is at the burner before
closing the door.
Under extreme vent configurations, allow several minutes
(5-15) for the flame to stabilize after ignition.
Provide adequate ventilation and combustion air. Provide
adequate accessibility clearance for servicing and operat-
ing the fireplace. Never obstruct the front opening of the
fireplace.
Objects placed in front of the fireplace must be kept a
minimum of 48" from the front face of the unit.
Minimum clearance to combustible construction
from fireplace and vent surfaces:
fireplace framing - 0" to stand-offs (top, rear and sides)
fireplace finishing - 5
3
/
8
" to sides,
23
3
/
8
" to top of fireplace opening.
vent pipe - 2 inches
recessed depth - 29 inches
FOR YOUR SATISFACTION, THIS FIREPLACE HAS BEEN
TEST-FIRED TO ASSURE ITS OPERATION AND QUALITY!
Maximum input is 43,000 BTU/hr for both natural gas and pro-
pane. When the fireplace is installed at elevations above 4,500ft,
and in the absense of specific recommendations from the local
authority having jurisdiction, the certified high altitude input rat-
ing shall be reduced at the rate of 4% for each additional 1,000ft.
Maximum output for natural gas is 33,540 BTU/hr at an effi-
ciency of 78%; and 34,000 BTU/hr for propane at an efficiency
of 79%. Minimum inlet gas supply pressure is 4.5 inches water
column for natural gas and 11 inches water column for propane.
Maximum inlet gas pressure is 7 inches water column for natu-
ral gas and 13 inches water column for propane. Manifold pres-
sure under flow conditions is 3.5 inches water column for natu-
ral gas and 10 inches water column for propane.
This fireplace is approved for bathroom, bedroom and bed-
sitting room installations and is suitable for mobile home in-
stallation. The natural gas model can only be installed in a
mobile home that is permanently positioned on its site and
fueled with natural gas.
FIGURE 1
THIS GAS FIREPLACE SHOULD BE INSTALLED AND SER-
VICED BY A QUALIFIED INSTALLER to conform with local
codes. Installation practices vary from region to region and it
is important to know the specifics that apply to your area,
for example: in Massachusetts State:
• The fireplace damper must be removed or welded in the
open position prior to installation of a fireplace insert or
gas log.
• The appliance off valve must be a “T” handle gas cock.
• The flexible connector must not be longer than 36 inches.
• The appliance is not approved for installation in a bedroom or
bathroom unless the unit is a direct vent sealed combustion prod
uct.
• WARNING: This product must be installed by a licensed
plumber or gas fitter when installed within the
commonwealth of Massachusetts.
In absence of local codes, install to the current CAN/CGA -
B149 Installation Code in Canada or to the National Fuel Gas
Code, ANSI Z223.1, and NFPA 54 in the United States. Suit-
able for mobile home installation if installed in accordance
with the current standard CAN/CSA Z240MH Series, for gas
equipped mobile homes, in Canada or ANSI Z223.1 and NFPA
54 in the United States.
The fireplace and its individual shutoff valve must be discon-
nected from the gas supply piping system during any pres-
sure testing of that system at test pressures in excess of 1/2
psig (3.5 kPa). The fireplace must be isolated from the gas
supply piping system by closing its individual manual shutoff
valve during any pressure testing of the gas supply piping
system at test pressures equal to or less than 1/2 psig (3.5
kPa).
When the fireplace is installed directly on carpeting, vinyl tile
or other combustible material other than wood flooring, the
fireplace shall be installed on a metal or wood panel extend-
ing the full width and depth.
The optional heat circulating blower is supplied with a cord. If
installed, the junction box must be electrically connected and
grounded in accordance with local codes. In the absence of
local codes, use the current CSA C22.1 CANADIAN ELEC-
TRICAL CODE in Canada or the ANSI/NFPA 70 NATIONAL
ELECTRICAL CODE in the United States.
GENERAL INSTRUCTIONS
GENERAL INFORMATION

6
W415-0447 / B / 05.24.05
Do not use abrasive cleaners to clean plated parts. Buff
lightly with a clean dry cloth. The glass is 3/16" ceramic
glass available from your Napoleon / Wolf Steel Ltd. dealer.
DO NOT SUBSTITUTE MATERIALS. Clean the glass after
the first 10 hours of operation with a recommended gas
fireplace glass cleaner. Thereafter clean as required. DO
NOT CLEAN GLASS WHEN HOT! If the glass is not kept
clean permanent discolouration and / or blemishes may
result.
This fireplace may be installed in an aftermarket
permanently located, manufactured (mobile) home, where
not prohibited by local codes.
This fireplace is only for use with the type of gas indicated
on the rating plate. This fireplace is not convertible for use
with other gases, unless a certified kit is used.
No external electricity (110 volts or 24 volts) is required for
the gas system operation.
Expansion / contraction nosies during heating up and cooling
down cycles are normal and are to be expected. Change in
flame appearance from "HI" to "LO" is more evident in natural
gas than in propane.
FIGURES 2A-C
Use only Wolf Steel, Simpson Dura-Vent, Selkirk Direct Temp
or American Metal Amerivent venting components.
For Simpson Dura-Vent, Selkirk Direct Temp and American
Metal Amerivent, follow the installation procedure provided
with the venting components.
All outer pipe joints of these venting systems must be sealed
using Red RTV Hight Temperature Sealant.
Wolf Steel, Simpson Dura-Vent, Selkirk Direct Temp and
American Metal Amerivent venting systems must not be
combined.
A starter adaptor must be used and may be purchased from
the corresponding supplier:
Supplier 5&8 ZC
Duravent W175-0170
Amerivent 4DSC-N2
Direct Temp 5DT-AAN
When using Napoleon venting components, use only ap-
proved Wolf Steel Ltd. rigid / flexible vent components with
the following termination kits: WALL TERMINAL KIT GD422R,
or 1/12 TO 7/12 PITCH ROOF TERMINAL KIT GD410, 8/12
TO 12/12 ROOF TERMINAL KIT GD411, FLAT ROOF TERMI-
NAL KIT GD412 or PERISCOPE KIT GD401 (for wall pen-
etration below grade). With flexible venting, in conjunction
with the various terminations, use either the 5 foot vent kit
GD420 or the 10 foot vent kit GD430. These vent kits allow
for either horizontal or vertical venting of the fireplace.
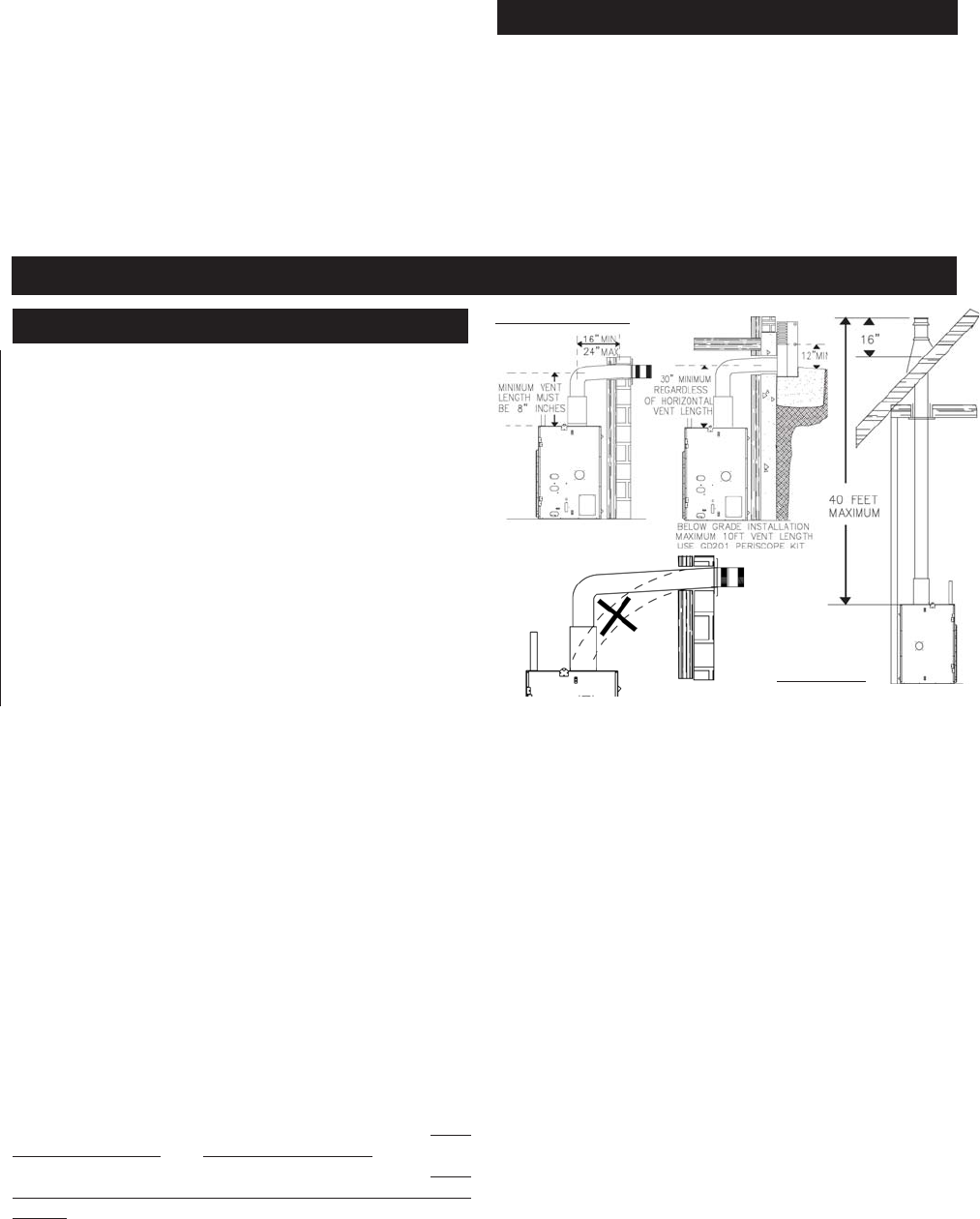
The maximum allowable vertical vent length is 40 feet.
The maximum number of allowable 5" vent connections is
three horizontally or vertically (excluding the fireplace and
the air terminal connections).
For optimum flame appearance and fireplace performance,
keep the vent length and number of elbows to a minimum.
The air terminal must remain unobstructed at all times.
Examine the air terminal at least once a year to verify that it
is unobstructed and undamaged.
FIGURE 3
CARE OF GLASS, AND PLATED PARTS
When venting, the horizontal run must be kept to a mini-
mum of 16 inches or a maximum of 20 feet. If a 20 foot
horizontal run is required, the fireplace must have a mini-
mum vertical rise immediately off the fireplace of 57
inches. FIGURES 2a-c. When terminating vertically, the
vertical rise is a minimum 34 inches and a maximum 40
feet above the fireplace. FIGURE 3.
VENTING
VENTING LENGTHS & AIR TERMINAL LOCATIONS
Horizontal runs may have a 0 inch rise per foot in all cases
using SIMPSON DURA-VENT or NAPOLEON RIGID OR
FLEXIBLE venting components when venting as
illustrated in Figures 2a, 2b, and 2c.
For optimum performance, it is recommended that all
horizontal runs have a minimum ¼ inch rise per foot.
Provide a means for visually checking the vent connec-
tion to the fireplace after the fireplace is installed.
Do not allow the inside liner to bunch up on horizontal or
vertical runs and elbows. Keep it pulled tight. A 1¼" air
gap between the inner and outer liner all around is
required for safe operation.
Vent lengths that pass through unheated spaces (attics,
garages, crawl space) should be wrapped with a pro-
tective insulation sleeve to minimize condensation.
Use a firestop when penetrating interior walls, floor or
ceiling.
For safe and proper operation of the fireplace follow the
venting instruction exactly.
Deviation from the minimum vertical vent length can cre-
ate difficulty in burner start-up and/or carboning.
If vertical rises greater than 57 inches are necessary,
the increased rise must be deducted from the horizon-
tal run.

7
W415-0447 / B / 05.24.05
when (HT) < (VT)
Simple venting configuration (only one 90° elbow)
VERTICAL
RISE IN
FEET
V
T
FIGURE 4
See graph to determine the required vertical rise VT for the
required horizontal run HT.
For vent configurations requiring more than one 90° elbow,
the following formulas apply:
Formula 1: H
T
< V
T
Formula 2: H
T
+ V
T
< 40 feet
Example 1:
90°
90°
V
1
=3 ft
V
2
=8 ft
VT=
V
1
+
V
2
=
3 + 8 = 11 ft
H
1
= 2.5 ft
H
2
=2 ft
H
R
=H
1
+ H
2
= 2.5 + 2 = 4.5 ft
H
O
=.
03(three 90° elbows - 90°) = .03(270° - 90°) = 5.4 ft
H
T
=H
R
+ H
O
= 4.5 + 5.4 = 9.9 ft
H
T
+ V
T
= 9.9 + 11 = 20.9 ft
Formula 1: H
T
< V
T
9.9 < 11
Formula 2: H
T
+ V
T
< 40 feet
20.9 < 40
Since both formulas are met, this vent configuration is
acceptable.
FIGURE 5
90°
H1
V2
H2
V1
HORIZONTAL VENT RUN PLUS OFFSET IN FEET HT
The shaded area within the lines represents acceptable
values for HT and VT .
for the following symbols used in the venting calculations
and examples are:
>- greater than
>- equal to or greater than
<- less than
<- equal to or less than
HT- total of both horizontal vent lengths (HR) and offsets
(HO) in feet
HR- combined horizontal vent lengths in feet
HO- offset factor: .03(total degrees of offset - 90°*) in
feet
VT- combined vertical vent lengths in feet
feet inches
1° 0.03 0.5
15° 0.45 6.0
30° 0.9 11.0
45° 1.35 16.0
90°*2.7 32.0
* the first 90° offset has a zero value and is shown in the
formula as -90°
DEFINITIONS ELBOW VENT LENGTH VALUES
TOP EXIT / HORIZONTAL TERMINATION

8
W415-0447 / B / 05.24.05
H2
H1
V190°
See graph to determine the required verti-
cal rise VT for the required horizontal run
HT.
V1=VT = 6 ft
H1=3 ft
H2=5 ft
HR=H1 + H2 = 3 + 5 = 8 ft
HO= .03(two 90° elbows - 90°) = .03(180° - 90°) = 2.7 ft
HT=HR + HO = 8 + 2.7 = 10.7 ft
H
T
+ V
T
=
10.7 + 6 =16.7
Formula 1: HT < 4.2 VT
4.2 VT = 4.2 x 6 = 25.2 ft
10.7 < 25.2
Formula 2: HT + VT < 24.75 feet
16.7 < 24.75
Since both formulas are met, this vent configuration is ac-
ceptable.
For vent configurations requiring more than one 90° elbow
the following formulas apply:
Formula 1: HT < 4.2 VT
Formula 2: HT + VT < 24.75 feet
Example 2:
Example 3:
V
1
=4 ft
V
2
= 1.5 ft
VT=V1 + V2 = 4 + 1.5 = 5.5 ft
H
1
=2 ft
H
2
=1 ft
H
3
=1 ft
H
4
= 1.5 ft
HR=H1 + H2 + H3 + H4 = 2 + 1 + 1 + 1. 5 = 5.5 ft
HO= .03(four 90° elbows - 90°) = .03(360° - 90°) = 8.1 ft
H
T
=H
R
+ H
O
= 5.5 + 8.1 = 13.6 ft
H
T
+ V
T
= 13.6 + 5.5 = 19.1 ft
Formula 1: H
T
< 4.2 V
T
4.2 VT = 4.2 x 5.5 = 23.1 ft
13.6 < 23.1
Formula 2: H
T
+ V
T
< 24.75 feet
19.1 < 24.75
Since both formulas are met, this vent configuration is
acceptable.
FIGURE 6
FIGURE 7
REQUIRED
VERTICAL
RISE IN
INCHES
VT
HORIZONTAL VENT RUN PLUS OFFSET IN FEET HT
FIGURE 8
H2
H4
V2
90°
H3
H1
V1
90°
The shaded area within the lines represents acceptable
values for HT and VT .
when (HT) > (VT)
Simple venting configuration (only one 90° elbow)
TOP EXIT / HORIZONTAL TERMINATION

9
W415-0447 / B / 05.24.05
REQUIRED
VERTICAL RISE
IN FEET
V
T
HORIZONTAL VENT RUN PLUS OFFSET IN FEET
H
T
The shaded area within the lines represents acceptable
values for HT and VT .
when (HT) < (VT)
Simple venting configurations
FIGURE 9
For vent configurations requiring more than zero 90° elbow
(top exit) or one 90° elbow (rear exit), the following formulas
apply:
Formula 1: H
T
< V
T
Formula 2: H
T
+ V
T
< 40 feet
See graph to determine the required vertical rise VT for the
required horizontal run HT.
TOP EXIT VERTICAL TERMINATION

10
W415-0447 / B / 05.24.05
MAXIMUM
VERTICAL
RISE IN
FEET
V
T
HORIZONTAL VENT RUN PLUS OFFSET IN FEET
H
T
The shaded area within the lines represents acceptable
values for HT and VT .
See graph to determine the required vertical rise VT for the
required horizontal run HT.FIGURE 11
V
1
=2 ft
V
2
=1 ft
V
3
=1.5 ft
VT=
V
1
+
V
2
+
V
3
=
2 + 1 + 1.5 = 4.5 ft
H
1
=6 ft
H
2
=2 ft
HR=H1 + H2 = 6 + 2 = 8 ft
HO= .03(four 90° elbows - 90°)
= .03(90 + 90 + 90 + 90 - 90) = 8.1 ft
H
T
=H
R
+ H
O
= 8 + 8.1 = 16.1 ft
H
T
+ V
T
= 16.1 + 4.5 = 20.6 ft
Formula 1: H
T
< 3V
T
3VT=
3 x
4.5 = 13.5 ft
16.1 > 13.5
Since this formula is not met, this vent configuration is
unacceptable.
Formula 2: H
T
+ V
T
< 40 feet
20.6 < 40
Since only formula 2 is met, this vent configuration is
unacceptable and a new fireplace location or vent con-
figuration will need to be established to satisfy both for-
FIGURE 10
H1
H2
V3
V1
90° 90°
90°
V2
90°
when (HT) > (VT)
Simple venting configurations
TOP VERTICAL TERMINATION
For vent configurations requiring more than two 90° elbow
(top exit) or one 90° elbow (rear exit), the following formulas
apply:
Formula 1: H
T
< 3V
T
Formula 2: H
T
+ V
T
< 40 feet
Example 7:

11
W415-0447 / B / 05.24.05
AIR TERMINAL INSTALLATIONS
**
**
* Recommended to prevent condensation on windows and thermal breakage
****
****
** It is recommended to use a heat shield and to maximize the distance to vinyl clad soffits.
******
******
*** The periscope GD-201 requires a minimum 18 inches clearance from an inside corner.
********
********
**** This is a recommended distance. For additional requirements check local codes.
††
††
† Three feet above if within 10 feet horizontally.
‡‡
‡‡
‡ A vent shall not terminate directly above a sidewalk or paved driveway that is located between two single family
dwellings and serves both dwellings.
††††
††††
†† Permitted only if the veranda, porch, or deck is fully open on a minimum of two sides beneath the floor.
†*†*
†*†*
†* Recommenced to prevent recirculation of exhaust products. For additional requirements check local codes.
A
B
C
D
E
F
G
H
I
J
K
L
M
N
O
12 INCHES
9 INCHES
12 INCHES*
18 INCHES**
12 INCHES**
0 INCHES
0 INCHES***
2 INCHES***
3 FEET****
3 FEET****
9 INCHES
3 FEET†
7 FEET****
12 INCHES****
16 INCHES
2 FEET†*
Clearance above grade, veranda porch, deck or balcony.
Clearance to windows or doors that open.
Clearance to permanently closed windows.
Vertical clearance to ventilated soffit located above the terminal within
a horizontal distance of 2 feet from the centerline of the terminal.
Clearance to unventilated soffit.
Clearance to an outside corner wall.
Clearance to an inside non-combustible corner wall or protruding
non-combustible obstructions (chimney, etc.).
Clearance to an inside combustible corner wall or protruding com-
bustible obstructions ( vent chase, etc.).
Clearance to each side of the centerline extended above the meter
/ regulator assembly to a maximum vertical distance of 15ft.
Clearance to a service regulator vent outlet.
Clearance to a non-mechanical air supply inlet to the building or a
combustion air inlet to any other appliance.
Clearance to a mechanical air supply inlet.
Clearance above a paved sidewalk or paved driveway located on
public property unless fitted with a heat shield kit GD-301.
Clearance under a veranda, porch, deck or balcony.
Clearance above the roof.
Clearance from an adjacent wall including neighbouring buildings.
CANADIAN U.S.A.
12 INCHES
12 INCHES
12 INCHES*
18 INCHES**
12 INCHES**
0 INCHES
0 INCHES***
2 INCHES***
3 FEET
3 FEET
12 INCHES
6 FEET
7 FEET‡
12 INCHES††
16 INCHES
2 FEET†*
INSTALLATIONS
FIGURE 12

12
W415-0447 / B / 05.24.05
ROUND OR
SQUARE HOLE
12.500"
16.000"c/c
14
7
/
16
"
13"
FIGURE 13
This application occurs when
venting through an exterior
wall. Having determined the air
terminal location, cut and frame
a hole in an exterior wall. The
recommended framed opening
is 147/16" W x 13" H with a mini-
mum 121/2" round or square
opening inside a finished wall.
See figure15.
1. Mark and cut the vent pipe
shield to the determined depth of
the combustible wall. Apply a bead of
caulking (not supplied) to the framework or
to the shield plate (in the case of a finished wall) and secure
the shield through the opening to the interior wall. The final
location of the vent pipe shield should maintain the required
clearance to the 8" vent pipe / liner. (See note above). Do not
fill this cavity with any type of material. Apply a bead of caulk-
ing all around and place a firestop spacer over the vent shield
to restrict cold air from being drawn into the room or around
the fireplace. Ensure that both spacer and shield maintain
the required clearance to combustibles. Once the vent
pipe / liner is installed in its final position, apply sealant be-
tween the pipe / liner and the firestop spacer.
This application occurs
when venting through a
roof. Installation kits for
various roof pitches are
available from your Napo-
leon dealer. See Acces-
sories to order the spe-
cific kit required.
1. Determine the air terminal location, cut and frame
147/16" W x 13" H openings in the ceiling and the roof to pro-
vide the minimum 2 inch clearance between the fireplace
pipe / liner and any combustible material. Try to centre the
exhaust pipe location midway between two joist to prevent
having to cut them. Use a plumb bob to line up the centre of
the openings. DO NOT FILL THIS SPACE WITH ANY TYPE
OF MATERIAL.
A vent pipe
shield will prevent
any materials such
as insulation, from
filling up the 1" air
space around the
pipe. Nail headers
between the joist
for extra support.
2. Apply a bead of caulking (not supplied) to the frame-
work or to the Wolf Steel vent pipe shield plate or equivalent
(in the case of a finished ceiling), and secure over the open-
ing in the ceiling. A firestop must be placed on the bottom of
each framed opening in a roof or ceiling that the venting sys-
tem passes through. Apply a bead of caulking all around
and place a firestop spacer over the vent shield to restrict
cold air from being drawn into the room or around the fire-
place. Ensure that both spacer and shield maintain the re-
quired clearance to combustibles. Once the vent pipe / liner
is installed in its final position, apply sealant between the pipe
/ liner and the firestop spacer.
FIGURE 16
FIGURE 14
OR
HORIZONTAL INSTALLATION
VERTICAL INSTALLATION
FIGURE 15
INSTALLATION
WALL AND CEILING PROTECTION
FOR SAFE AND PROPER OPERATION OF THE FIRE-
PLACE, FOLLOW THE VENTING INSTRUCTIONS
EXACTLY.
A 2” CLEARANCE IS REQUIRED AROUND THE
VENT PIPE.
SHOWN FROM INSIDE THE STRUCTURE

13
W415-0447 / B / 05.24.05
FIGURE 19
4. Insert the liners through the firestop maintaining the
required clearance to combustibles. Secure to the exterior
wall and make weather tight by sealing with caulking (not
supplied).
5. Apply a heavy bead of the high temperature sealant, not
supplied with the unit, to the inside of the 5" liner approxi-
mately 1" from the end. Slip the liner a minimum of 2" over
the fireplace vent collar and secure with 3 #8 screws.
6. Using the 8" diameter flexible aluminium liner, apply seal-
ant, slide a minimum of 2" over the fireplace combustion air
collar and secure with 3 #8 screws.
1. Fasten the roof support to the
roof using the screws provided.
The roof support is optional.
In this case the venting is to
be adequately supported
using either an alternate
method suitable to the au-
thority having jurisdiction
or the optional roof sup-
port.
2. Stretch the 5" diameter aluminium flexible liner to the
required length. Slip the liner a minimum of 2" over the inner
sleeve of the air terminal and secure with 3 #8 screws. Seal
using a heavy bead of the high temperature sealant (W573-
0007 not supplied).
3. Repeat using 8" diameter aluminium flexible liner.
4. Thread the air terminal pipe
assembly down through the
roof. The air terminal must be
located vertically and plumb. At-
tach the air terminal assembly
to the roof support, ensuring that
a minimum 16" of air terminal
will penetrate the roof when fas-
tened.
DO NOT CLAMP THE FLEX-
IBLE ALUMINIUM LINER.
1. Cut or frame a hole in an exterior wall with a minimum
round or square opening of 121/2" W x 121/2" H. Secure the
firestop spacer over the opening to the interior wall.
Secure the terminal to the terminal extension plate (see fig-
ure 19).
2. Stretch the 5" diameter aluminum flexible liner to the
required length taking into account the additional length
needed for the finished wall surface. Slip the liner a mini-
mum of 2" over the inner sleeve of the air terminal and se-
cure with 3 #8 screws. Apply a heavy bead of the high tem-
perature sealant (W573-0007 not provided).
3. Using the 8" diameter flexible aluminum liner, slide over
the outer combustion air sleeve of the air terminal and se-
cure with 3 #8 screws. Seal as before.
FIGURE 18
Use only approved aluminum flexible liner kits
marked:
"Wolf Steel Approved Venting" as
identified by the stamp only on the
8” outer liner.
USING FLEXIBLE VENT COMPONENTS
HORIZONTAL AIR TERMINAL INSTALLATION
VERTICAL AIR TERMINAL INSTALLATION
FIGURE 17
FIGURE 20
For safe and proper operation of the fireplace, follow
the venting instructions exactly.
All inner exhaust and outer intake vent pipe joists may
be sealed using either Red RTV high temp silicone seal-
ant or Black high temp Mill Pac with the exception of the
fireplace exhaust flue collar which must be sealed using
Mill Pac (not supplied).

14
W415-0447 / B / 05.24.05
FIGURE 23
The vent system must be supported approximately every 3
feet for both vertical and horizontal runs. Use Wolf Steel vent
spacers or equivalent every 3 feet and either side of each
elbow to maintain the minimum 1¼" clearance between the
outer and inner vent pipes. Use Wolf Steel support ring as-
sembly or equivalent noncombustible strapping to maintain
the minimum clearance to combustibles for both vertical and
horizontal runs.
All inner exhaust and outer intake vent pipe joists may
be sealed using either Red RTV high temp silicone seal-
ant or Black high temp Mill Pac with the exception of the
fireplace exhaust flue collar which must be sealed using
Mill Pac (not supplied).
1. Move the fireplace into po-
sition. Measure the vent length required
between terminal and fireplace taking into account the
additional length needed for the finished wall surface and any
1¼" overlaps between venting components.
2. Apply high temperature sealant (W573-0007 not pro-
vided) to the outer edge of the 5" inner collar of the fireplace.
Attach the first vent component and secure using 3 self tap-
ping screws. Repeat using 8" piping.
3. Holding the air terminal (with the air deflectors to the top
and the lettering in an upright, readable position) insert the
terminal into both vent pipes with a twisting motion to ensure that
both the terminal sleeves engage into the vent pipes and seal-
ant. Secure the terminal to the exterior wall and make weather
tight by sealing with caulking (not supplied).
1. Follow the instructions for "Horizontal Air Terminal In-
stallations", items 1 to 3.
2. Continue adding components alternating inner and outer
venting. Ensure that all 5" venting and elbows have sufficient
vent spacers attached and each component is securely fas-
tened to the one prior. Attach the 5" telescopic sleeve to the
vent run.
Repeat using a 8" tel-
escopic sleeve. Secure
and seal as before. To fa-
cilitate completion, at-
tach 5" and 8" couplers
to the air terminal.
3. Install the air terminal. See item
3 of the Horizontal Air Terminal In-
stallation. Extend the 5" telescopic
sleeve; connect to the air terminal
assembly. Fasten with self tapping
screws and seal. Repeat using the
8" telescopic sleeve.
FIGURE 24
5. Remove nails from the shingles, above and to the sides
of the chimney. Place the flashing over the air terminal and
slide it underneath the sides and upper edge of the shingles.
Ensure that the air terminal is properly centred within the flash-
ing, giving a 3/4" margin all around. Fasten to the roof. Do
not nail through the lower portion of the flashing. Make
weather-tight by sealing with caulking. Where possible, cover
the sides and top edges of the flashing with roofing material.
6. Apply a heavy bead of weatherproof caulking 2 inches
above the flashing. Slide the storm collar around the air ter-
minal and down to the caulking. Tighten to ensure that a
weather-tight seal between the air terminal and the collar is
achieved. Attach the other storm collar centred between the
air intake and the air exhaust slots onto the air terminal. Tighten
securely. Attach the vertical rain cap.
Spacers are attached to the 5" inner flex liner at predeter-
mined intervals to
maintain a 1-1/4" air
gap to the 8" outer
liner. These spacers
must not be removed.
FIGURE 21
7. If more liner needs to be used to reach the fireplace, couple
them together as illustrated. The vent system must be sup-
ported approximately every 3 feet for both vertical and horizon-
tal runs. Use noncombustible strapping to maintain a clearance
to combustibles of 1".
1. Install the 5 inch diameter aluminium flexible liner to the
fireplace. Secure with 3 screws and flat washers. Seal the
joint and screw holes using the high temperature sealant
(W573-0007 not provided).
2. Install the 8 inch diameter aluminium flexible liner to the
fireplace. Attach and seal the joints.
FIREPLACE VENT CONNECTION
USING RIGID VENT COMPONENTS
HORIZONTAL AIR TERMINAL INSTALLATION
EXTENDED HORIZONTAL AIR TERMINAL
INSTALLATION
FIGURE 22

15
W415-0447 / B / 05.24.05
Proceed once the vent installation is complete.
Note : All gas connections must be contained within
the fireplace when complete.
1. The fireplace is de-
signed to accept a ½"
gas supply line. The
fireplace is equipped
with a ½" manual
shut-off valve, and an 18" listed flexible gas connector.
2. The access to the gas in-
let is located on the right side
of the outer shell.
3. To ease the connection,
the shut off can be flexed out
through the side of the fire-
place where the connection
can be made.
4. When flexing any gas line, support the gas valve so that
the lines are not bent. (see Access Pg. 20).
5. Check for gas leaks by brushing on a soap and water
solution. Do not use open flame.
1. Move the fireplace into position.
2. Fasten the roof support to the roof using the screws
provided. The roof support is optional. In this case the vent-
ing is to be adequately supported using either an alternate
method suitable to the authority having jurisdiction or the op-
tional roof support.
3. Apply high temperature sealant (W573-0007 not pro-
vided) to the outer edge of the inner sleeve of the air terminal.
Slip a 5" diameter coupler a minimum of 2" over the sleeve
and secure using 3 screws.
4. Apply high temperature sealant
to the outer edge of the of the out-
side sleeve of the air terminal. Slip a
8" diameter coupler over the sleeve
and secure as before. Trim the 8"
coupler even with the 5" coupler end.
5. Thread the air terminal pipe
assembly down through the roof
support and attach, ensuring that
a minimum 16" of air terminal will
penetrate the roof when fastened.
If the attic space is tight, we rec-
ommend threading the Wolf Steel
vent pipe collar or equivalent
loosely onto the air terminal as-
sembly as it is passed through
the attic. The air terminal must be
located vertically and plumb.
6. Remove nails from the shingles, above and to the sides
of the chimney. Place the flashing over the air terminal and
slide it underneath the sides and upper edge of the shingles.
Ensure that the air terminal is properly centred within the
flashing, giving a 3/4" margin all around. Fasten to the roof.
Do NOT nail through the lower portion of the flashing. Make
weather-tight by sealing with caulking. Where possible, cover
the sides and top edges of the flashing with roofing material.
7. Apply a heavy bead of waterproof caulking 2 inches
above the flashing. Slide the storm collar around the air ter-
minal and down to the caulking. Tighten to ensure that a
weather-tight seal between the air terminal and the collar is
achieved. Attach the other storm collar centred between the
air intake and air exhaust slots onto the air terminal. Tighten
securely. Attach the rain cap.
8. Continue adding rigid venting sections, sealing and
securing as above. Attach a 5" collapsed telescopic pipe to
the last section of rigid piping. Secure with screws and seal.
Repeat using a 8" telescopic pipe.
9. Run a bead of high temperature sealant around the
outside of the 5" collar on the fireplace. Pull the adjustable
pipe a minimum of 2" onto the collar. Secure with 3 screws.
Repeat with the 8" telescopic pipe.
10. In the attic, slide the vent pipe collar down to cover up
the open end of the shield and tighten. This will prevent any
materials, such as insulation, from filling up the 1" air space
around the pipe.
FIGURE 26
FIGURE 25
VERTICAL VENTING INSTALLATION GAS INSTALLATION
Vertical terminations may display a very active flame. If this
appearance is not desirable, the vent exit must be restricted
using restrictor plate, W500-0205. This reduces the velocity
of the exhaust gases, slowing down the flame pattern and
creating a more traditional appearance.
The plate has a series of holes to allow for adjustment.
Remove the two screws on either side of the exhaust collar
inside the firebox. Install the plate in the desired set of holes,
then replace the screws.
RESTRICTING VERTICAL VENTS
RESTRICTOR PLATE
TOP OF THE
FIREBOX
FLUE COLLAR
FIGURE 27
FIGURE 28
FIGURE 29

16
W415-0447 / B / 05.24.05
WARNING
Facing and/or finishing
material must never
overhang into the fireplace
opening.
Do not distort or force the frame
kit components.
When using a rough finish
material (i.e.; stone), maintain a
¼” - ½” border from the framing
components.
FIGURE 33
FRAMING CLEARANCE TO COMBUSTIBLES
MAINTAIN THESE MINIMUM CLEARANCES TO COM-
BUSTIBLES:
Fireplace framing - 0" to stand-offs (top, rear & sides)
Fireplace finishing - 5 3/8” to sides of fireplace opening.
- 23 3/8” to top of fireplace opening.
FIGURE 30
FIGURE 31
FIGURE 32
The Madison can be installed with either an arched opening
(FK80-A) or a rectangular opening (FK80-R) using one of
the above kits.
The framing kits serve two purposes. They are necessary if
optional doors (DK80) are to be installed.
Secondly, they act as a reference when finishing to the fire-
place opening.
The FK80 is designed to accomodate 1/2” to 1 1/2” finishing
material. They are adjustable to ensure doors open fully .
If finishing material is thicker than 1 1/2”, an optional exten-
sion kit is available (EK80).
It is best to frame your fireplace after it is positioned and the
vent system is installed. Use 2x4's and frame to local build-
ing codes.
Note: In order to avoid the possibility of exposed insulation
or vapour barrier coming in contact with the fireplace body, it
is recommended that the walls of the fireplace enclosure
be “finished” (ie: drywall/sheetrock), as you would finish any
other outside wall of a home. This will ensure that clearance
to combustibles is maintained within the cavity.
For convenience, the stand-offs have been shipped flat.
Before framing, ensure the stand-offs are opened and
screwed in place.
It is not necessary to install a hearth extension, but the fire-
place should be raised to be flush with either the hearth or
the finished floor.
When roughing in the fireplace, raise the fireplace to ac-
commodate for the thickness of the finished floor materials,
i.e. tile, carpeting, hard wood, which if not planned for will
interfere with the removal of the hearth strip, which must be
removed to access the firebox.
Objects placed in front of the fireplace should be kept a
minimum of 48" away from the front face.
IMPORTANT:
The Madison requires a
minimum inside enclosure
height of 72”.
For temperature require-
ments, this area must be left
unobstructed.
It is recommended that the
enclosure be ventilated at
the top and bottom to circu-
late the hot air.
Non-combus-
tible finishing
material (ie: ce-
ment board,
brick, stone,
tile) may be
used to finish
the front of the
unit.

17
W415-0447 / B / 05.24.05
FIGURE 34
MANTLE CLEARANCES
Combustible mantle clearance can vary according to the
mantle depth. Use the graph to help evaluate the clearance
needed.
Do NOT use the fireplace if any part has been under
water.
Call a qualified service technician IMMEDIATELY to have
the fireplace inspected for damage to the electrical
circuit.
If access to the control area is necessary BEFORE
INSTALLATION, remove the access panel.
The access panel must be re-installed before operating
the unit.
It is necessary to hard wire this fireplace.
Permanently framing the fireplace with an enclosure, re-
quires the fireplace junction box to be hardwired.
This fireplace must be electrically connected and grounded
in accordance with local codes. In the absence of local codes,
use the current CSA C22.1 CANADIAN ELECTRICAL CODE
in Canada or the ANSI/NFPA 70-1996 NATIONAL ELECTRI-
CAL CODE in the United States.
ELECTRICAL CONNECTION
HARD WIRING CONNECTION
SCHEMATIC
FIGURE 35

18
W415-0447 / B / 05.24.05
Before the glass door can be removed, the control doors
must be removed and the hearth strip and screen assembly
must be removed.
Lift the hearth strip up and away from the front of the fire-
place. The curtain assembly can be removed by lifting the
rod out from the three hooks at the top inside edge of the
door opening.
LOG SHIPPING
BRACKET
Before installing the logs, you must first remove the log ship-
ping bracket. Lift up to remove.
LOG SHIPPING BRACKET
DOOR REMOVAL
The glass door is secured to the top front edge of the fire-
box. Pull the handle of the latch forward, then lift the hook out
from the slot in the door frame to release the top of the door.
Lift the door out from the retainer along the bottom of the
door using the top and bottom handles. Pull the bottom
edge of the door out from the fireplace until the top will pivot
forward.
FIGURE 39
FIGURE 36
FIGURE 37
FIGURE 38
FINISHING

19
W415-0447 / B / 05.24.05
Glowing embers are NOT recommended. The burner has
been designed to achieve maximum glow without embers.
4. Place log #4, with the charred branch pointed inward.
Locate the pins into the holes in log#1 and log#2, this will
hold the rear log in position.
5. Place the end of log #5 on the right end of log #1. The fork
in the log should straddle the knot on top of log #2.
GLOWING EMBERS
BAFFLE INSTALLATION
CHARCOAL EMBERS
PHAZERTM logs, exclusive to Napoleon Fireplaces, provide
a unique and realistic glowing effect that is different in every
installation. The madison logs are fuel specific. Do not
interchange. Refer to the replacement parts list.
1. Place the rear log #1 onto the locating studs along the
back edge of the PHAZERAMIC™ burner.
2. Position log #2 onto the locators on the PHAZERAMIC™
burner.
3. Position the slot on the bottom of log #3 onto the bracket
shown with the charred face of the log to the front.
LOG PLACEMENT
Your fireplace has been supplied with the decorative brick
panels installed, however, it is necessary to install the fibre
baffle, on top of the side and rear panels.
Charcoal provided could be randomly placed on the fibre
hearth on both sides of the burner, and across the front, es-
pecially at the hearth joint.
Log colours may vary. During the initial use of the fire-
place, the colours will become more uniform as colour
pigments burn in during the heat activated curing pro-
cess.
Positioning the logs improperly will cause flame impinge-
ment and carboning.
Blocked burner ports can cause an incorrect flame pattern,
carbon deposits and delayed ignition. PHAZERTM logs glow
when exposed to direct flame. Use only certified PHAZERTM
logs available from your Napoleon dealer.
1
2
3
4
5
BRACKET
FIGURE 40a-f
Note
For propane, remove the
screw from the #3 log support
bracket. Move the bracket to
the right most location, then
install the log.
Decorative brick panels must be installed before the logs.
See installation instructions supplied with the panel kit.

20
W415-0447 / B / 05.24.05
BLOWER REPLACEMENT
The Napoleon MADISON comes equipped with a heat circu-
lating blower. The blower is pre-wired and is controlled by
the remote control supplied with the unit. For control details,
see operation. Pg . 22.
Drywall dust will penetrate into the blower bearings,
causing irreparable damage. Care must be taken to pre-
vent drywall dust from coming into contact with the
blower or its compartment. Any damage resulting from
this condition is not covered by the warranty policy.
1. Turn off the power to the fireplace.
2. Turn off the gas valve.
3. Remove the glass door, logs, rear log support, side brick
panels, rear baffle, and rear panel.
4. To remove the lamp assembly, remove the two log locat-
ing studs located just behind the main burner. It is not neces-
sary to disconnect the wires, the assembly can lay along the
right side of the firebox.
5. The blower mounting plate can now be removed. Remove
the six screws that secure the plate to the firebox back. The
blower is secured to this plate.
6. Disconnect the wire connectors and ground before attempt-
ing to remove the blower from the plate.
7. When re-installing the replacement blower, it will be nec-
essary to replace the gasket (W290-0091) on the cover plate.
1. Turn off the power to the unit.
2. Turn off the gas valve.
3. Remove the door and logs.
4. Loosen the lense retainer screws and pivot the retainers
out of the way.
5. Using a small flat screwdriver, gently lift the orange lense
from the housing.
LAMP REPLACEMENT
6. Slide the defective bulb to either side until the opposite
end is disengaged. Remove the bulb lifting the disengaged
end.
7. Replace with a 75 watt halogen lamp (E-11 BASE).
Install the replacement bulb using the protective wrap
to avoid touching the lense, then disgard the protec-
tive wrap.
8. Repeat steps 5 - 1 for installation.
FIGURE 41
FIGURE 43
FIGURE 42
FIGURE 44
FIGURE 45

21
W415-0447 / B / 05.24.05
FIGURE 48 1. Unplug the cord from the junction box
2. Pull the the tab on the receiver lock forward.
3. Pull up on the receiver and disconnect the wires.
4. Install the new receiver (see schematic Pg.23).
1. Remove the
hearth strip.
2. Open the right
control door.
3. Remove the
switch plate by pull-
ing on the left side.
4. Remove the valve
housing by pulling on
the handle.
5. Lift up and set the
housing towards the
back of the fire
place.
REMOTE RECEIVER REMOVAL
REMOTE AND VALVE ACCESS
The valve on the Madison is piped with two flex connectors
(one inlet, one outlet).
It can be removed or pulled forward for service.
1. Remove the wing nut and pivot the valve out from the slot
at the bottom of the valve.
2. Slowly pull the valve through the control door careful not
to kink the gas lines or wires.
VALVE REMOVAL
FIGURE 46
FIGURE 47
The control area can be accessed either through the control
door or through the access door inside the firebox.
Follow the door removal instructions. Remove the right side
panel. Remove the four screws from the access door.
Note: A new gasket will be required, when re-installing
the door (see replacement parts).
CONTROL DOOR
INNER ACCESS DOOR

22
W415-0447 / B / 05.24.05
The timer setting is used to maintain the desired room
temperature for a specific length of time (1 to 120 minutes)
that you want the fireplace to operate.
Press the TIMER button once. The LCD will blink "_ _ _".
Adjust the time using the up or down arrow keys. (The LCD
displays the time chosen.) Press the TIMER button to engage
the timer. (When time has expired, the LCD switches to off
and displays "_ _ _".)
1. With “Auto” displayed, pushing the button marked "flame
height" will display a flame image and the current flame
setting.
2. Use “UP” “DOWN” buttons to choose 3 different flame
levels:1,2,3.
1. Pushing the button marked "fan speed" will display a fan
image.
2. Use “UP” “DOWN” buttons to choose 3 different fan lev-
els:1,2,3.
1. Remove the cover on the back of the
remote transmitter to expose the code
switches. Slide the code switches to your
choice of ON or OFF positions. Factory
settings are all "OFF".
2. Remove power from the remote
receiver by unplugging the power cord or turning power off
at the circuit breaker.
3. Take the remote transmitter close to the remote receiver
(less than 5 feet from the remote receiver is recommended).
4. Turn on the remote receiver.
5. Install fresh AAA alkaline batteries into the remote trans-
mitter. The LCD on the remote transmitter will blink.
6. Press a button on the remote transmitter. The remote re-
ceiver will produce a "beep" sound when it receives the code
from the remote transmitter.
7. If you do not hear a "beep" sound from the remote receiver,
remove batteries from the remote transmitter and power from
the remote receiver. Wait for 1 minute and repeat steps 3 to
6.
8. Replace the cover of the remote transmitter and the
receiver. The system is now ready to operate.
9. If you desire to operate multiple remote receivers with
one remote transmitter, continue to hold the button on the
remote transmitter as you bring the remote transmitter within
5 feet of each remote receiver then slide the switch on the
remote receivers to ON position. Each will acknowledge
receipt of coding with a beep.
When used in this mode, the remote transmitter will work
normally but the buttons will be disabled.
Remove the cover at the back of the Remote Transmitter to
expose the Child-Proof switch. To activate this function, slide
the switch to the position marked C/P. "*Child-Proof*" will
appear on the LCD.
1. Turns accent light on/off.
2. Turns gas flame on/off.
3. Activates gas flame
adjustment.
4. Activates fan adjustment.
5. Adjusts options #3 & #4 up.
6. Sets the timer.
7. Adjusts options #3 & #4 down.
8. Sets the time.
To operate the gas fireplace, the pilot needs to be running
and the gas valve turned to the on position.
You can run the fireplace on manual or remote.
When operating the main burner on manual without
power, the fireplace will operate on low input only.
Turn the main power switch to
manual to operate the gas features
of the fireplace in the event of a
power failure.
Turn the main power switches to
remote to operate with the gas and
the electric features of the fireplace
with the remote or thermostat.
With power, the manual position
operates the same as the remote position with the exception
of the ability to turn off the gas.
Turn the main power switch to the off position to disable both
the gas and the electric features of the fireplace.
To configure the remote transmitter to the receiver, see
“Privacy Code”.
OPERATION / MAINTENANCE
FIREPLACE OPERATION
HAND HELD REMOTE OPERATION
FIGURE 50
Thermostatic control automatically cycles the fireplace on and
off to maintain the desired room temperature. To turn the
fireplace burner on, press the gas button. The LCD will display
the “Auto” / “OFF” status. Set the desired room temperature
using the up or down arrow keys. If the temperature of
the room exceeds the set temperature, the
thermostat will automatically turn the fireplace
off.
Note: If a blower is connected, the thermostatic control will
also turn off the blower when the fireplace is turned off.
Press and hold the CLOCK button until the hour flashes.
Adjust the hour using the up or down keys. Press the CLOCK
button again to confirm the hour and change to minutes.
Again, adjust the minutes using the up or down keys. Finally,
press the CLOCK button twice to confirm the settings and
return to normal, operating mode.
CODE SWITCHES
MANUAL / THERMOSTAT OPERATION
TO SET THE TIME
TIMER OPERATION
FLAME HEIGHT
FAN SPEED
PRIVACY CODE
CHILD-PROOF FUNCTION
FIGURE 49

23
W415-0447 / B / 05.24.05
A. This fireplace is equipped with a pilot which must be
lit by hand while following these instructions exactly.
B. Before operating smell all around the fireplace area
for gas and next to the floor because some gas is
heavier than air and will settle on the floor.
C. Use only your hand to turn the gas control knob /
manual shut-off knob. never use tools. if the knob
will not turn by hand, do not try to repair it. call a
qualified service technician. force or attempted re
pair may result in a fire or explosion.
D. Do not use this fireplace if any part has been under
water. immediately call a qualified service technician
to inspect the fireplace and replace any part of the
control system and any gas control which has been
under water. GAS KNOB
When lit for the first time, the fireplace will emit a slight
odour for a few hours. This is a normal temporary condition
caused by the curing of the logs and the "burn-in" of internal
paints and lubricants used in the manufacturing process
and will not occur again. Simply open a window to sufficiently
ventilate the room.
After extended periods of non-operation such as following a
vacation or a warm weather season, the fireplace may emit
a slight odour for a few hours. This is caused by dust par-
ticles in the heat exchanger burning off. Open a window to
sufficiently ventilate the room.
Purge all gas lines with the glass door of the fireplace
open. Assure that a continuous gas flow is at the
burner before closing the door.
• Do not touch any electric switch.
• Do not use any phone in your building.
• If you cannot reach your gas supplier, call the fire
department.
• Turn off all gas to the fireplace.
• Do not try to light any appliance.
• Immediately call your gas supplier from a
neighbor's phone. Follow the gas supplier's instruct
ions.
Warning: if you do not follow these instructions exactly, a
fire or explosion may result causing property damage,
personal injury or loss of life. Initial lighting of the pilot and
main burners must be done with the glass door off.
Do not connect valve or wall switch to electricity. See in-
stallation instructions.
When lighting and re-lighting, the gas knob cannot be
turned from pilot to off unless the knob it depressed slightly.
1. STOP! read the safety information on the operating
label.
2. Turn off all electric power to the fireplace.
3. Turn the gas knob clockwise to off.
4. Wait 5 minutes to clear out any gas. If you smell gas,
including near the floor, STOP! Follow "B" on the op
erating label. If you don't smell gas, go to the next
step.
5. If the fireplace is equipped with a flame adjustment
valve, turn clockwise to off.
6. Find pilot located infront of the back log on the right
side.
7. Turn gas knob counter-clocwise to pilot.
8. This unit is equipped with an auto-spark.
Depress and hold gas knob . Keep knob fully depressed
for one minute, then release. If pilot does not continue
to burn repeat steps 3 through 7.
9. With pilot lit, turn gas knob counter-clockwise
to on.
10. If equipped with flame adjustment valve, push
and turn knob to high.
11. If equipped with remote on-off switch, main burner
may not come on when you turn the valve to on or
high. Remote switch must be in the on position to ignite
burner.
12.Turn on all electric power to
the fireplace.
1. Turn off all electric power to the fireplace if service is to
be performed.
2. For a complete shut-down procedure: push in gas con-
trol knob slightly and turn clockwise to off. Do not
force.
3. For a temporary shut-down procedure: set thermostat
to lowest setting or remote switch to off. Press and turn
the gas knob clockwise to pilot.
OPERATING INSTRUCTIONS
FOR YOUR SAFETY READ BEFORE LIGHTING:
LIGHTING INSTRUCTIONS
TO TURN OFF GAS
WHAT TO DO IF YOU SMELL GAS
FIGURE 51
FIGURE 52
To restore button function temporarily, press the Up and
Down buttons in the following sequence:
up-down-down-up-down.
If no button is pressed within 2 minutes, the transmitter will
return to the Child-Proof mode.
To operate the fireplace manually in the event of a power/
battery failure, the main power switch located in the fire-
place, may be switched to the manual position.
Once power has been restored, it will be necessary to
reset the remote. Resetting is done either by pushing
the red reset button on the receiver or manually cycling
the gas button on the transmitter. This is done by remov-
ing the batteries from the transmitter.
Re-install the batteries after 1 minute. Press any button
while holding the transmitter within 5 feet of the fire-
place.
IN THE EVENT OF A POWER FAILURE
The receiver will emit a “beep” sound to confirm pro-
gramming has been successful.

24
W415-0447 / B / 05.24.05
Closing the air shutter will cause a more yellow flame, but
can lead to carboning. Opening the air shutter will cause a
more blue flame, but can cause flame lifting from the burner
ports. The flame may not appear yellow immediately; allow
15 to 30 minutes for the final flame colour to be established.
FIGURE 53
FIGURE 55
Adjust the pilot screw to provide properly sized flame. Turn
in a clockwise direction to reduce the gas flow.
FIGURE 54
ADJUSTMENTS
PILOT BURNER ADJUSTMENT VENTURI ADJUSTMENT
Air Shutter Openings
LP
3
/
8
"
NG 3/16"
AIR CONTROL ROD ACCESS
1. Remove the glass door.
2. Remove the logs.
3. Remove the air deflector / light housing (Pg. 19)
(It is not necessary to disconnect the wires. The assembly
can lay along the right side of the firebox).
4. The air control rod can now be adjusted. Pushing the rod
towards the back will open the air shutter (larger hole, larger
opening), pulling the rod towards the front will close the
shutter (smaller hole, smaller opening).
FIGURE 56
TURN OFF THE GAS AND ELECTRICAL POWER
BEFORE SERVICING THE FIREPLACE.
CAUTION: Label all wires prior to disconnection when ser-
vicing controls. Wiring errors can cause improper and dan-
gerous operation. Verify proper operation after servicing. This
fireplace and its venting system should be inspected before
use and at least annually by a qualified service person. The
fireplace area must be kept clear and free of combustible
materials, gasoline or other flammable vapours and liquids.
The flow of combustion and ventilation air must not be ob-
structed.
1. In order to properly clean the burner and pilot as-
sembly, remove the logs to expose both assemblies.
2. Keep the control compartment, logs, burner, air shut-
ter opening and the area surrounding the logs clean
by vacuuming or brushing, at least once a year.
3. Check to see that all burner ports are burning. Clean
out any of the ports which may not be burning or are
not burning properly.
4. Check to see that the pilot flame is large enough to
engulf the thermocouple and thermopile and reaches
toward the burner with the third jet.
5. Replace the cleaned logs.
6. Check to see that the main burner ignites completely
on all openings when the gas knob for the burner is
turned on. A 5 to 10 second total light-up period is
satisfactory. If ignition takes longer, consult your Na-
poleon dealer / distributor.
7. Check that the gasketing on the sides, top and bot-
tom of the door is not broken or missing. Replace if
necessary.
MAINTENANCE

25
W415-0447 / B / 05.24.05
#
PART NO. DESCRIPTION
1 W135-0205 #1 - REAR LOG
2 W135-0206 #2 - MIDDLE LOG - NG
3 W135-0207 #3 - RIGHT LOG
4 W135-0208 #4 - LEFT LOG
5 W135-0218 #5 - CROSSOVER LOG
6 GL-644 LOG SET ASSEMBLY - NG
7 GL-647 LOG SET ASSEMBLY - LP
8 W135-0021 #2 - MIDDLE LOG - LP
9* W390-0002 DOOR LATCH (EA)
10 W725-0044 NATURAL GAS VALVE - MODULATING
10 W725-0045 PROPANE GAS VALVE - MODULATING
11 W455-0024 #30 NATURAL GAS ORIFICE
11 W455-0056 #50 PROPANE GAS ORIFICE
12 W680-0014 THERMOCOUPLE
13 W240-0005 ELECTRODE C/W LEAD
14 W680-0015 THERMOPILE
15 W010-1194 NATURAL GAS PILOT ASSEMBLY
15 W010-1201 PROPANE GAS PILOT ASSEMBLY
16 W455-0070 NG PILOT INJECTOR
16 W455-0068 LP PILOT INJECTOR
17* W385-0245 NAPOLEON LOGO
18* W562-0008 DOOR GASKET (132 INCHES)
19 W500-0028 FIRESTOP (2 INCH CLEARANCE)
20 W100-0081 BURNER
21 W062-0010 BLOWER
22 W660-0041 SPARK SWITCH
23 W660-0030 REMOTE TRANSMITTER
24 W660-0031 REMOTE RECEIVER
25 W190-0017 DC SPARK UNIT CONTROL
26* W715-0629 CAST IRON TRIM
27 W185-0020 CAST GRATE
28 W010-1203 DOOR FRAME
29* W010-1289 GLASS C/W GASKET
30 W300-0073 GLASS DIFUSER
31 W565-0078 SCREEN
32* W750-0126 WIRE HARNESS LIGHT SOCKET
33* W290-0091 BLOWER MOUNTING GASKET
34* W120-0054 CURTAIN ROD CAP
35 W387-0005 LAMP
36 W500-0206 TERMINAL EXTENSION PLATE
37 W290-0099 ACCESS DOOR GASKET
50* W573-0007 HI-TEMP SEALANT
51* GD501 HEAT GUARD
52 GA-566 HOT AIR DISTRIBUTION KIT
53 GA-72 HOT AIR EXHAUST KIT
54 GA-70 EXTENSION KIT, 5FT FLEX VENT
55* W010-0370 WALL SUPPORT ASSEMBLY
56* W175-0166 5" COUPLER
57* W175-0002 8" COUPLER
58* W175-0229 CONVERSION KIT - NG TO LP
58* W175-0230 CONVERSION KIT - LP TO NG
59 FK80-R FRAMING KIT - RECTANGULAR
60 FK80-A FRAMING KIT - ARCHED
61 DK80A-HC DECORATIVE DOORS-HAMMERED COPPER-ARCHED
62 DK80R-HC DECORATIVE DOORS-HAMMERED COPPER-RECTANGULAR
61 DK80A-HP DECORATIVE DOORS-HAMMERED PEUTER-ARCHED
62 DK80R-HP DECORATIVE DOORS-HAMMERED PEUTER-RECTANGULAR
63 GD800-KT OLD TOWN RED BRICK KIT
63 GD806-KT HERRINGBONE/SANDSTONE BRICK KIT
63 GD807-KT SANDSTONE BRICK KIT
63 PRP80 PORCELAIN REFLECTIVE PANELS BRICK KIT
Contact your dealer for questions concerning prices and
availability of replacement parts. Normally all parts can be
ordered through your Napoleon dealer or distributor.
When ordering replacement parts always give the following
information:
1. MODEL & SERIAL NUMBER OF FIREPLACE
2. INSTALLATION DATE OF FIREPLACE
3. PART NUMBER
4. DESCRIPTION OF PART
5. FINISH
FOR WARRANTY REPLACEMENT PARTS , A PHOTOCOPY OF THE
ORIGINAL INVOICE WILL BE REQUIRED TO HONOUR THE CLAIM.
REPLACEMENTS
* IDENTIFIES ITEMS WHICH ARE NOT ILLUSTRATED. FOR
FURTHER INFORMATION, CONTACT YOUR NAPOLEON
DEALER.
REPLACEMENT PARTS
ACCESSORIES
GD420 (5 FT)
38* W010-0772 5" FLEXIBLE ALUMINIUM LINER
- (5 FT) C/W SPACERS
38* W730-0012 8" FLEXIBLE ALUMINIUM LINER - (5 FT)
GD430 (10 FT)
38* W730-0013 8" FLEXIBLE ALUMINIUM LINER - (10 FT)
38* W010-0773 5" FLEXIBLE ALUMINIUM LINER
- (10 FT) C/W SPACERS
39* W010-0810 WALL SUPPORT ASSEMBLY
40 PERISCOPE - GD401
41 WALL TERMINAL KIT - GD422R
42 1/12 TO 7/12 PITCH - GD410
43 8/12 TO 12/12 PITCH - GD411
44 FLAT ROOF - GD412
45 W010-0774 AIR TERMINAL
46 W120-0015 VERTICAL CAP
47 W170-0086 STORM COLLAR
48 W010-0453 ROOF SUPPORT
49 W263-0065 / ROOF FLASHING
W263-0066 /
W263-0067
FLEXIBLE VENT KITS
TERMINAL KITS
ROOF TERMINAL KITS

26
W415-0447 / B / 05.24.05 * WARNING: This is a fast acting thermocouple. It is an integral safety component. Replace only with
a fast acting thermocouple supplied by Wolf Steel Ltd.

27
W415-0447 / B / 05.24.05
White / grey film
forms.
Sulphur from fuel is being de-
posited on glass, logs or com-
bustion chamber surfaces.
- clean the glass with a gas fireplace glass cleaner. DO NOT CLEAN
GLASS WHEN HOT.
If deposits are not cleaned off regularly, the glass may become per-
manently marked.
Carbon is being de-
posited on glass,
logs or combustion
chamber surfaces. Flame is impinging on the
logs or combustion cham-
ber.
- check that the logs are correctly positioned.
- open air shutter to increase the primary air.
- check the input rate: check the manifold pressure and orifice size as
specified by the rating plate values.
- check that the door gasketing is not broken or missing and that the
seal is tight.
- check that both 4" and 7" vent liners are free of holes and well sealed
at all joints.
- check that minimum rise per foot has been adhered to for any hori-
zontal venting.
Air shutter has become
blocked
- ensure air shutter opening is free of lint or other obstructions.
Pilot goes out when
the gas knob is re-
leased.
The gas valve has
an interlock device
which will not al-
low the pilot
burner to be lit un-
til the thermo-
couple has cooled.
Allow approxi-
mately 60 seconds
for the thermo-
couple to cool.
System is not correctly
purged.
- purge the gas line with the glass door open.
Out of propane gas. - fill the tank.
Pilot flame is not large enough - turn up the pilot flame.
- gently twist the pilot head to improve the flame pattern around the
thermocouple.
Pilot flame is not engulfing the
thermocouple.
Thermocouple shorting /
faulty.
- loosen and tighten thermocouple.
- clean thermocouple and valve connection.
- replace thermocouple.
- replace valve.
Faulty valve. - replace.
Main burner flame
is a blue, lazy,
transparent flame.
Blockage in vent. - remove blockage. In really cold conditions, ice buildup may occur on
the terminal and should be removed as required.
Incorrect installation. - refer to Figure 13 to ensure correct location of storm collars.
Flames are consis-
tently too large or
too small.
Carboning occurs.
- check pressure readings:
Inlet pressure can be checked by turning screw (A) counter-clockwise
2 or 3 turns and then placing pressure gauge tubing over the test point.
Gauge should read 7" (minimum 4.5") water column for natural gas or
13" (11" minimum) water column for propane. Check that main burner
is operating on "HI".
Outlet pressure can be checked the same as above using screw (B).
Gauge should read 3.5" water column for natural gas or 10" water
column for propane. Check that main burner is operating on "HI".
AFTER TAKING PRESSURE READINGS, BE SURE TO TURN
SCREWS CLOCKWISE FIRMLY TO RESEAL. DO NOT
OVERTORQUE.
Leak test with a soap and water solution.
Unit is over-fired or under-
fired.
Exhaust fumes
smelled in room,
headaches.
Fireplace is spilling. - check door seal and relief flap seal.
- check for chimney blockage
- check that the paint curing process is complete
TROUBLE SHOOTING GUIDE
SYMPTOM PROBLEM TEST SOLUTION
B
EFORE
ATTEMPTING
TO
TROUBLESHOOT
,
PURGE
YOUR
UNIT
AND
INITIALLY
LIGHT
THE
PILOT
AND
THE
MAIN
BURNER
WITH
THE
GLASS
DOOR
OPEN
.

28
W415-0447 / B / 05.24.05
Remote wall switch
is in "OFF" position;
main burner comes
on when gas knob is
turned to "ON" posi-
tion.
Wall switch is mounted up-
side down
- reverse.
Faulty valve. - replace.
- replace.Remote wall switch is
grounding.
- check for ground (short); repair ground or replace wire.Remote wall switch wire is
grounding.
Main burner goes
out; pilot goes out.
Refer to "MAIN BURNER GOES OUT; PILOT STAYS ON"
Vent is blocked
Vent is re-circulating
- check for vent blockage.
- check joint seals and installation.
4" flexible vent has become
disconnected from fireplace.
- re-attach to fireplace.
Main burner goes
out; pilot stays on.
Pilot flame is not large
enough or not engulfing the
thermopile
- turn up pilot flame.
- replace pilot assembly.
Thermopile shorting - clean thermopile connection to the valve. Reconnect.
- replace thermopile / valve.
Remote wall switch wire is too
long; too much resistance in
the system.
- shorten wire to correct length or wire gauge.
Faulty thermostat or switch. - replace.
Pilot will not light. - check if pilot can be lit by a match
- check that the wire is connected to the push button ignitor.
- check if the push button ignitor needs tightening.
- replace the wire if the wire insulation is broken or frayed.
- replace the electrode if the ceramic insulator is cracked or broken.
- replace the push button ignitor.
No spark at pilot burner
- fill the tank.Out of propane gas
Spark gap is incorrect - spark gap should be 0.150" to 0.175" (5/32" to 11/64" approx.) from
the electrode tip and the pilot burner. To ensure proper electrode loca-
tion, tighten securing nut (finger tight plus 1/4 turn).
No gas at the pilot burner - check that the manual valve is turned on.
- check the pilot orifice for blockage.
- replace the valve.
- call the gas distributor.
Pilot goes out while
standing; Main
burner is in 'OFF'
position.
Gas piping is undersized. - turn on all gas appliances and see if pilot flame flutters, diminishes or
extinguishes, especially when main burner ignites. Monitor appliance
supply working pressure.
- check if supply piping size is to code. Correct all undersized piping.
Pilot burning; no
gas to main burner;
gas knob is on 'HI';
wall switch / ther-
mostat is on.
Themostat or switch is defec-
tive.
- connect a jumper wire across the wall switch terminals; if main burner
lights, replace switch / thermostat.
Wall switch wiring is defec-
tive.
- disconnect switch wires &connect a jumper wire across terminals 1
& 3; if the main burner lights, check the wires for defects and / or re-
place wires.
Main burner orifice is plugged. - remove stoppage in orifice.
Faulty valve. - replace.
SYMPTOM PROBLEM TEST SOLUTION