Omega Engineering CTXLPT CTXL-PT-W9 Wireless Temperature/ Humidity Transmitter User Manual M4098 CTXL TRH AddendFeb10 Layout 1
Omega Engineering, Inc. CTXL-PT-W9 Wireless Temperature/ Humidity Transmitter M4098 CTXL TRH AddendFeb10 Layout 1
User Manual

1
1 - Introduction
This is our standard CTXL-TRH recorder, except that the temperature/humidity
probe is wireless. The wireless probe consists of a temperature/humidity
wireless transmitter and a wireless receiver.
The wireless transmitter has a built-in temperature/humidity sensor that
measures the air quality (Temperature & Humidity). It then transmits the data to
a wireless receiver thru an RF link. The transmitter is operated from one AA size
lithium battery and/or a DC adapter input. The transmitter also has two LED
indicators. One Green LED is for transmission indication. One Red LED is for
low battery indication as well as other wireless communication errors.
The wireless receiver plugs directly to the circular chart recorder where a
temperature/humidity probe is normally plugged into. The wireless receiver
acts as a probe, so the wireless RF link is totally transparent to the circular chart
recorder. The recorder thinks that it is directly connected to the probe. This
design allows us to offer the wireless probe as an option to all existing recorders
in the field. There is no internal upgrade required to make a standard circular
chart recorder wireless.
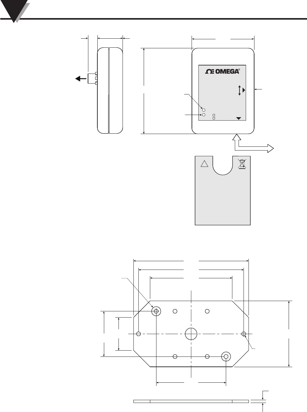
Figure 1 shows Temperature/ Humidity wireless transmitter, General
Dimensions, Labels and descriptions.
Figure 2 shows the Battery location in the wireless transmitter. You need to open
the case to get access to the battery.
Figure 3 shows Temperature/ Humidity wireless receiver, General Dimensions,
Labels and descriptions.
Figure 4 shows the General Dimensions of the mounting bracket plate.
Figure 5 shows the wireless transmitter mounting bracket assembly.
Figure 6 shows the transmitter mounting bracket assembly for tripod mount.
Figure 7 shows the transmitter mounting bracket with DIN rail mount.
M4098 CTXL Addendum
CTXL-TRH Wireless Temperature/
Humidity Chart Recorder
CTXL-PT Series Wireless
Temperature/Humidity Transmitter
CTXL-PR Series Wireless
Temperature/Humidity Receiver
WIRELESS
RECEIVER
WIRELESS
TRANSMITTER
M4098 CTXL Addendum
Addendum

2
Figure 1. Temperature/Humidity Wireless Transmitter, General Dimensions, Labels
and Descriptions
Figure 2. Battery Location in the Wireless Transmitter
M4098 CTXL Addendum
Addendum
CTXL-PT Series
Wireless
Temperature/Humidity
Transmitter
BATTERY POWER SWITCH
DC ADAPTER INPUT
USB PC
INTERFACE
TRANSMIT LED
INDICATOR
LOW BATTERY
& COMM ERROR
LED INDICATOR
2.750
2.00
2.125
Ø.500
TEMPERATURE/HUMIDITY
SENSOR PROBE
FCC LABEL LOCATED
ON BACK SIDE OF
TRANSMITTER.
OFF
ON
POWER
DC POWER
INPUT
5V
100 mA
-+
R
OMEGA
-W9(915MHz)
-W8(868MHz)
LO-BAT/ERROR
TX
USB
PORT
CONFIG
PROBE
This device complies with Part 15 of
the FCC rules. Operation is subject to
the following two conditions:
1) This device may not cause harmful
interference;
2) This device must accept any
interference received, including
interference that may cause
undesired operation.
FCC ID: WR3-CTXLPT
IC: 8205A-CTXLPT
PATENT PENDING
Made in U.S.A.
LO-BAT/ERROR
TX
POWER OFF
CONFIG
ON
DC POWER
INPUT
5 V
100 MA
–+
PROBE
USB
PORT
–W9(915MHz)
–W8(868MHz)
CTXL-PT SERIES
WIRELESS
TEMPERATURE/HUMIDITY
TRANSMITTER
!
+
–3.6VDC LITHIUM BATT
J3
J7 S1
J1
D4
D3

3
M4098 CTXL Addendum
Addendum
Figure 3. Temperature/Humidity Wireless Receiver, General Dimensions, , Labels and
Descriptions
Figure 4. Mounting Bracket Plate General Dimensions
USB PC
INTERFACE
NORMAL/
CONFIGURATION
SWITCH
SELECTION
COMM ERROR
LED INDICATOR
RECEIVE
LED
INDICATOR
2.750
2.00
TO CTXL CHART RECORDER
0.800
0.300
FCC LABEL LOCATED
ON BACK SIDE OF
RECEIVER
CTXL-PR SERIES
WIRELESS
TEMPERATURE
AND HUMIDITY
RECEIVER
NORMAL
USB
PORT
CONFIG
ERROR
RX
–W9(915MHz)
–W8(868MHz)
This device complies with
Part 15 of the FCC rules.
Operation is subject to the
following two conditions:
1) This device may not
cause harmful interference;
2) This device must accept
any interference received,
including interference that
may cause undesired
operation.
!
Made in U.S.A.
LOCATION OF CASE
MOUNTING SCREWS
C
L
L
C
2.125
1.375
0.125 DIA.
2 PLCS
MOUNTING
HOLES
1.00
2.500
3.200
3.500
2.000
0.090

4
M4098 CTXL Addendum
Addendum
Figure 5. Wireless Transmitter Mounting Bracket Assembly
Figure 6. Transmitter Mounting Bracket Assembly For Tripod Mount
Figure 7. Transmitter Mounting Bracket With DIN Rail Mount
WIRELESS TRANSMITTER
TWO MOUNTING
CASE SCREWS
TWO 4-40 MOUNTING
BRACKET SCREWS
FOUR #6 FLAT HEAD SELF TAP
MOUNTING SCREWS - DIN RAI
L
TWO MOUNTING
CASE SCREWS
WIRELESS TRANSMITTER
1/4-20 FLAT HEAD SCREW
WASHER & HEX NUT
TWO MOUNTING
CASE SCREWS
WIRELESS TRANSMITTER

5
2 - Configuration
The wireless transmitter and receiver have the following factory default
configuration:
Transmission time interval: 2 seconds
Channel Frequency: 915 MHz (US & Canada) or 868 MHz (Europe)
Unit ID: 00 (Both transmitter & receiver)
The user does not have to do any configuration to the transmitter or the receiver
if the factory configuration is satisfactory. However, if the user wants to change
the configuration, then you need to run the configuration software that comes
with the unit. Through the configuration software, the user can change the
transmission interval, channel frequency and the unit ID number. First install the
configuration software on your PC.
Configuring the wireless Transmitter – Turn off the battery power. Connect the
transmitter to the USB port of the PC with the cable provided. Run the
configuration software. Figure 8 shows the main menu of the software. The
buttons and the menu selections are described as follows:
Run – It will display the temperature/humidity in real time.
Program – It will save the new settings to the transmitter.
Read – It will read the current settings of the transmitter
Settings – It will take you to the communication settings menu
Frequency – You can select between 910/ 915/920 MHz frequencies.
Time interval – You can select from 2 seconds up to 2 minutes.
Unit ID - You can select a unit ID from 00 to 63.
Figure 8. Wireless Transmitter, Main Menu
M4098 CTXL Addendum
Addendum

6
You can have up to a total of 64 wireless transmitters in one location with
different unit ID numbers, so that there will not be any conflict between any of
the transmitters.
If you select the Broadcast option, the transmitter will transmit to any receiver in
the area at the same frequency regardless of its unit ID number.
After saving the new configuration, exit the program. Un-plug the transmitter
from the USB port, turn the battery power back on and you are good to go.
Configuring the wireless Receiver – Unplug the receiver from the chart
recorder. Connect the receiver to the USB port of the PC with the cable provided.
Set the slide switch to "Config". Run the configuration software. Figure 9 shows
the main menu of the software. The buttons and the menu selections are
described as follows:
Run – It will display the temperature/humidity in real time from the transmitter.
There is an RF signal strength gauge where it shows the signal strength of the
transmitter being received by the wireless receiver. This is a guide to show the
user how to install the transmitter with respect to the receiver so that you
maintain good signal strength and as a result good and reliable RF
communication.
Program – It will save the new settings to the receiver.
Read – It will read the current settings of the receiver
Settings – It will take you to the communication settings menu
Frequency – You can select between 910/915/920 MHz frequencies.
Time interval – You can select from 2 seconds up to 2 minutes.
Unit ID - You can select a unit ID from 00 to 63.
Figure 9. Wireless Receiver, Main Menu
M4098 CTXL Addendum
Addendum

7
You can have up to a total of 64 wireless receivers in one location with different
unit ID numbers, so that there will not be any conflict between any of the
receivers.
In order for a pair of wireless transmitter and receiver to communicate properly,
the time interval, channel frequency and the unit ID should be the same for both.
After saving the new configuration, exit the program. Un-plug the receiver from
the USB port, set the slide switch to "Normal", plug the receiver back to the chart
recorder and you are good to go.
Figure 10 shows the settings menu for selecting the COM port, and the
temperature Engineering unit.
Figure 10. Settings Menu (Transmitter/Receiver)
M4098 CTXL Addendum
Addendum

8
3 - Specifications
GENERAL
Temperature:
Range: -18 to 49°C (0 to 120°F)
Display Accuracy: 1°C (2°F)
Chart Accuracy: 1.5°C (3°F)
Display Resolution: 0.1° F or C
Relative Humidity:
Range: 2 to 98% RH
Display Accuracy:
3
% RH (From 15 to 90% RH), 5% RH
(< 15 or >90 %RH)
Chart Accuracy: 4% RH (From 15 to 90% RH), 6% RH
(<15 or >90 % RH)
Display Resolution: 1% RH
Display Data Sampling Rate: Once every 2 seconds
WIRELESS TRANSMITTER
Transmit time interval: 2 seconds – default, 10 seconds,
30 seconds, 1 minute, 2 minutes
Radio Frequency: ISM 915 MHz or ISM 868 MHz
RF Power Output: 5 dBm (3.16 mW)
Approvals:
Model: CTXL-TRH-(W or G)-W9: FCC, Class A, 915 MHz (US & Canada)
Model: CTXL-TRH-(W or G)-W8: CE, 868 MHz (Europe)
Model: CTXL-PT-W9: FCC, Class A, 915 MHz (US & Canada)
Model: CTXL-PT-W8: CE, 868 MHz (Europe)
RF Link Range:
Outdoor, line of sight: Up to 90 m (300')
Indoor/urban: Up to 33.5 m (110')
PC Interface: USB, 115200 baud rate, 8-bit Data,
1 Stop bit, No Parity
Operating Environment: -18 to 49°C (0 to 120°F), 2 to 98% RH
LED indicators:
Green LED: Transmit indication, blinks every time
interval
Red LED: Low Battery and other communication
error indications
Power: One 3.6 Vdc AA size Lithium Battery,
2400 mAH capacity or Optional AC
adapter
Battery Life: 1 year typical at transmitting every
minute
6 months typical at transmitting every 2
seconds
Dimensions: 70 x 51 x 20 mm (2.75" x 2" x 0.8")
M4098 CTXL Addendum
Addendum

9
WIRELESS RECEIVER
PC Interface: USB, 115200 baud rate, 8-bit Data, 1 Stop
bit, No Parity
Operating Environment: -18 to 49°C (0 to 120°F), 2 to 98% RH
LED indicators:
Green LED: Receive indication, blinks every time
interval
Red LED: Reflects transmitter low battery and
other communication error indications
Power: From the CTXL recorder through the
round DIN connector
Dimensions: 70 x 51 x 20 mm (2.75 x 2 x 0.8")
4 - Error Codes
Transmitter Error Codes
The wireless transmitter uses the Red LED to provide different error information
to the user and to the wireless receiver as follows:
2 Red LED Blinks means there is an RF communication error such as Framing,
CRC, buffer overflow, etc.
3 Red LED Blinks means that the transmitter fails to communicate with the
sensor probe
4 Red LED Blinks means Low Battery indication.
The highest priority error code is 2 blinks for RF communication error. The
lowest priority error code is 4 blinks to indicate low battery. If multiple errors
occur at the same time such as bad sensor probe and low battery, the
transmitter's red LED will blink 3 times. Only when this error clears, then the
transmitter's red LED will blink 4 times to indicate the low battery.
The red LED error reporting occurs every 30 seconds regardless of the
transmission time interval.
Receiver Error Codes
The wireless receiver basically reflects all the error codes of the wireless
transmitter as follows:
1 Red LED Blink means No good message has been received from the
transmitter within 4 transmission time intervals (like 4 minutes for 1 minute
time interval), or 30 seconds minimum. The receiver will continue to search for
the transmitter’s message 10 more minutes before deciding that the transmitter
is either off, out of order, or out of range at which point the receiver will shut
itself off to conserve power.
If the wireless transmitter is back on line after 10 minutes, then the user needs to
un-plug the receiver from the recorder and plug it back in to reset the wireless
receiver.
M4098 CTXL Addendum
Addendum

10
2 Red LED Blinks means there is an RF communication error such as Framing,
CRC, buffer overflow, etc.
3 Red LED Blinks means that the transmitter fails to communicate with the
sensor probe
4 Red LED Blinks means the transmitter’s Battery is low.
The highest priority error code is 1 LED blink for No good message from the
transmitter. The lowest priority error code is 4 LED blinks to indicate
transmitter’s low battery. If multiple errors occur at the same time such as bad
sensor probe and low battery, then the receiver’s red LED will blink 3 times.
Only when this error clears at the transmitter, the receiver will then blink 4 times
to indicate the next error, if any.
The red LED error reporting occurs every 10 seconds regardless of the
transmission time interval.
Any error code except for the low battery means Probe Error for the chart
recorder.
Wireless Transmitter Error Codes Description
2 Red LED Blinks RF Communication Error
3 Red LED Blinks Failed to communicate with sensor
probe
4 Red LED Blinks Low Battery
Wireless Receiver Error Codes Description
1 Red LED Blink No Good Message received from
Transmitter
2 Red LED Blinks RF Communication Error
3 Red LED Blinks Transmitter Failed to communicate
with Sensor
4 Red LED Blinks Transmitter Low Battery
M4098 CTXL Addendum
Addendum

11
5- Statement on FCC and CE Marking:
5.1 FCC - USA & Canada
FCC ID: WR3-CTXLPT
IC: 8205A-CTXLPT
This device complies with Part 15 of the FCC rules. Operation is subject to the
following two conditions:
1. This device may not cause harmful interference.
2. This device must accept any interference received, including interference that
may cause undesired operation
Changes or modifications not expressly approved by Omega Engineering, Inc.
could void user’s authority to operate this equipment.
This equipment has been tested and found to comply with
the limits for a Class A digital device, pursuant to part 15 of
the FCC Rules. These limits are designed to provide
reasonable protection against harmful interference when the
equipment is operated in a commercial environment. This
equipment generates, uses, and can radiate radio frequency
energy and, if not installed and used in accordance with the
instruction manual, may cause harmful interference to radio
communications. Operation of this equipment in a
residential area is likely to cause harmful interference in
which case the user will be required to correct the
interference at his own expense.
5.2 International Usage & CE Marking (Pending)
The Wireless CTXL (868 MHz mode) Series system components are CE marked
and certified for use in several European countries. Please contact OMEGA for
information on International Regulatory Compliance for each country.
It is your (the user’s) responsibility to insure that these products are operated
within the guidelines here in this manual and in conformance with all local or
national regulations and laws.
PRE-CAUTIONS - Transmitter Operation
• Do not operate your wireless device outside the recommended environmental
limits specified in this manual.
• Do not operate your wireless device in flammable or explosive environments.
• Do not operate your wireless device in medical, nuclear, or other dangerous
applications.
NOTE
02/10/2010
M4098 CTXL Addendum
Addendum

12
• No co-location with other radio transmitters is allowed. By definition, co-
location is when another radio device or it's antenna is located within 20 cm of
your wireless device and can transmit simultaneously.
• Do not install two wireless CTXL transmitters within 20 cm of each other.
• Do not operate your wireless transmitter closer than 20 cm to nearby persons.
PRE-CAUTIONS - Battery Operation
Your wireless transmitter is supplied with one AA size 3.6V Lithium battery
(Omega p/n OM-NOMAD-BATT). This battery is not re-chargeable. An optional
5V DC adapter is available (Omega p/n UNIV-AC-100/240-5V) for permanent
power installation.
• Do not operate your wireless transmitter with any other battery other than
what is specified in this manual.
• Do not place the battery in fire or heat the battery.
• Do not solder to or short the battery terminals.
• Do not disassemble or modify the battery.
• Dispose of your discharged batteries in accordance with your local, state, and
national laws.
02/10/2010
M4098 CTXL Addendum
Addendum