PAYNE Furnace/Heater, Gas Manual L0907498
User Manual: PAYNE PAYNE Furnace/Heater, Gas Manual PAYNE Furnace/Heater, Gas Owner's Manual, PAYNE Furnace/Heater, Gas installation guides
Open the PDF directly: View PDF .
Page Count: 42

Installation Instructions
Special Venting Requirements for Installations in Canada
Installation in Canada must conform to the requirements of CSA
B149 code. Vent systems must be composed of pipe, fittings,
cements, and primers listed to ULC $636. The special vent
fittings and accessory concentric vent termination kits and
accessory external drain trap have been certified to ULC $636 for
use with those IPEX PVC vent components which have been
certified to this standard. In Canada, the primer and cement must
be of the same manufacturer as the vent system - IPEX System
636, PVC/CPVC Primer, Purple Violet for Flue Gas Venting and
IPEX System 636, PVC Cement for Flue Gas Venting, rated
Class IIA, 65 deg C. must be used with this venting system - do
not mix primers and cements from one manufacturer with a vent
system from a different manufacturer. Follow the manufacturer's
instructions in the use of primer and cement and never use primer
or cement beyond its expiration date.
The safe operation, as defined by ULC $636, of the vent system
is based on following these installation instructions, the vent
system manufacturer's installation instructions, and proper use of
primer and cement. All fire stop and roof flashing used with this
system must be UL listed material. Acceptability under Canadian
standard CSA B149 is dependent upon full compliance with all
installation instructions. Under this standard, it is recommended
that the vent system be checked once a year by qualified service
personnel.
The authority having jurisdiction (gas inspection authority,
municipal building department, fire department, etc) should be
consulted before installation to determine the need to obtain a
permit.
Consignes sp_ciales pour l'installation de ventillation au Canada
Uinstallation faite au Canada doit se conformer aux exigences du
code CSA B149. Ce syst_me de ventillation dolt se composer de
tuyaux, raccords, ciments et appr_ts conformes au ULC $636. La
tuyauterie de ventillation des gaz, ses accessoires, le terminal
concentrique mural ainsi que l'ensemble du drain de condensat
ext_rieur ont _t_ certifies ULCS 636 pour l'application des
composantes IPEX PVC qui sont certifi_es fi ce standard. Au
Canada l'appr_t et le ciment doivent _tre du m_me manufacturier
que le syst_me de ventillation - IPEX Syst_me 636, Appr_t
PVC/CPVC. Mauve Violette pour conduit en _vacuation des gaz
et IPEX Syst_me 636, ciment pour PVC pour conduit en
_vacuation des gaz, _valu_ CLASSE IIA, 65 deg. C. doit _tre
utilis_ avec ce syst_eme d'_vacuation - ne pas m_langer l'appr_t
et le ciment d'un manufacturier avec le syst_me de ventillation
d'un autre manufacturier. Bien suivre les indications du
manufacturier lors de l'utilisation de l'appr_t et du ciment et ne
pas utiliser ceux-ci si la date d'expiration est atteinte.
Uop_ration s_curitaire, tel que d_finit par ULC $636, du syst_me
de ventilation est bass sur les instructions d'installation suivantes,
ainsi que l'usage appropri_ de l'appr_t et ciment. Tout arret feu et
solin de toit utilis_s avec ce syst_me doivent _tre des mat_riaux
list,s UL. Uacceptation du standard Canadien CSA B419 est
directement reli_ fi l'installation conforme aux instructions ci-
haut mentionn_es. Le standard Canadien recommande 1'
inspection par un personel qualifi_ et ce, une fois par annie.
Les autorit_es ayant juridiction (inspecteurs de gas, inspecteurs
en bfitiments, d@artement des incendies, etc) devraient _tre
consult_es avant l'installation afin de d_terminer si un permis est
requis.

Required Notice for Massachusetts Installations
IMPORTANT
The Commonwealth of Massachusetts requires compliance with regulation 248 CMR as follows:
5.08: Modifications to NFPA-54, Chapter 10
2) Revise 10.8.3 by adding the following additional requirements:
a. For all side wall horizontally vented gas fueled equipment installed in every dwelling, building or structure used
in whole or in part for residential purposes, including those owned or operated by the Commonwealth and where
the side wall exhaust vent termination is less than seven (7) feet above finished grade in the area of the venting,
including but not limited to decks and porches, the following requirements shall be satisfied:
1. INSTALLATION OF CARBON MONOXIDE DETECTORS. At the time of installation of the side wall horizontal vented
gas fueled equipment, the installing plumber or gasfitter shall observe that a hard wired carbon monoxide detector with an
alarm and battery back-up is installed on the floor level where the gas equipment is to be installed. In addition, the
installing plumber or gasfitter shall observe that a battery operated or hard wired carbon monoxide detector with an alarm is
installed on each additional level of the dwelling, building or structure served by the side wall horizontal vented gas fueled
equipment. It shall be the responsibility of the property owner to secure the services of qualified licensed professionals for
the installation of hard wired carbon monoxide detectors
a. In the event that the side wall horizontally vented gas fueled equipment is installed in a crawl space or an attic, the hard
wired carbon monoxide detector with alarm and battery back-up may be installed on the next adjacent floor level.
b. In the event that the requirements of this subdivision can not be met at the time of completion of installation, the owner
shall have a period of thirty (30) days to comply with the above requirements; provided, however, that during said thirty
(30) day period, a battery operated carbon monoxide detector with an alarm shall be installed.
2. APPROVED CARBON MONOXIDE DETECTORS. Each carbon monoxide detector as required in accordance with the
above provisions shall comply with NFPA 720 and be ANSI/UL 2034 listed and IAS certified.
3. SIGNAGE. A metal or plastic identification plate shall be permanently mounted to the exterior of the building at a
minimum height of eight (8) feet above grade directly in line with the exhaust vent terminal for the horizontally vented gas
fueled heating appliance or equipment. The sign shall read, in print size no less than one-half (1/2) inch in size, "(}AS
VENT DIRECTLY BELOW. KEEP CLEAR OF ALL OBSTRUCTIONS".
4. INSPECTION. The state or local gas inspector of the side wall horizontally vented gas fueled equipment shall not approve
the installation unless, upon inspection, the inspector observes carbon monoxide detectors and signage installed in
accordance with the provisions of 248 CMR 5.08(2)(a)1 through 4.
5. EXEMPTIONS: The following equipment is exempt from 248 CMR 5.08(2)(a)1 through 4:
(1.) The equipment listed in Chapter 10 entitled "Equipment Not Required To Be Vented" in the most current edition of
NFPA 54 as adopted by the Board; and
(2.) Product Approved side wall horizontally vented gas fueled equipment installed in a room or structure separate from
the dwelling, building or structure used in whole or in part for residential purposes.
c. MANUFACTURER REQUIREMENTS - GAS EQUIPMENT VENTING SYSTEM PROVIDED. When the
manufacturer of Product Approved side wall horizontally vented gas equipment provides a venting system design
or venting system components with the equipment, the instructions provided by the manufacturer for installation
of the equipment and the venting system shall include:
1. Detailed instructions for the installation of the venting system design or the venting system components; and
2. A complete parts list for the venting system design or venting system.
d. MANUFACTURER REQUIREMENTS - (}AS EQUIPMENT VENTING SYSTEM NOT PROVIDED. When
the manufacturer of a Product Approved side wall horizontally vented gas fueled equipment does not provide the
parts for venting the flue gases, but identifies "special venting systems", the following requirements shall be
satisfied by the manufacturer:
1. The referenced "special venting system" instructions shall be included with the appliance or equipment installation
instructions; and
2. The "special venting systems" shall be Product Approved by the Board, and the instructions for that system shall include a
parts list and detailed installation instructions.
e. A copy of all installation instructions for all Product Approved side wall horizontally vented gas fueled
equipment, all venting instructions, all parts lists for venting instructions, and/or all venting design instructions
shall remain with the appliance or equipment at the completion of the installation.

START-UP CHECK SHEET
For 95% Furnace
(This sheet is optional. Keep this page for future reference.)
Date of Start-Up:
Dealer Name:
Address:
City, State(Province), Zip or Postal Code:
Phone:
Owner Name:
Address:
City, State(Province), Zip or Postal Code:
Model Number:
Serial Number:
Setup Checks
Check the box when task is complete
All Electrical Connections Tight?
Have hoses been relocated for furnace application
(upflow/horizontal)?
Condensate Drain Connected?
Condensate Drain Trapped?
Manual Gas Shut-Off Upstream of
Furnace/Drip- Leg?
Gas Valve turned ON?
Type of Gas: Natural: Lj Propane: Lj
Filter Type and Size:
Calculated Firing Rate:(See Checks and Adjustments
Section).
Heating Check
Measured Line Pressure when Firing Unit:
Measured Manifold Gas Pressure:
Temperature of Supply Air:
Temperature of Return Air:
(°)m
(°)m
Temperature Rise (supply-return temperature):(°)__
In Rise (see furnace rating plate)? (o)__
Static Pressure (Ducts): Supply Air Return __
Which blower speed tap is used? (Heating)
Optional Check: CO ? CO2 ?
Cooling Check
Temperature of Supply Air: (o)__
Temperature of Return Air: (o)__
Temperature Difference: (o)__
Static Pressure (Ducts) cooling: Supply Air Return
Blower Speed Tap used for cooling:
Dealer Comments:

[i
NOTE: Read the entire instruction manual before starting the
installation.
NOTE: Please retain these instructions with the furnace after
installation for future reference.
SAFETYCONSIDERATIONS
FURNACE RELIABILITY HAZARD
Improper installation or misapplication of furnace may
require excessive servicing or cause premature component
failure.
Application of this furnace should be indoors with special
attention given to vent sizing and material combustion air
requirements, gas input rate, air temperature rise, unit
leveling, and unit sizing.
FIRE, EXPLOSION, ELECTRICAL SHOCK AND
CARBON MONOXIDE POISONING HAZARD
Failure to follow this warning could result in personal
injury, death, or property damage.
Improper installation, adjustment, alteration, service,
maintenance, or use can cause carbon monoxide poisoning,
explosion, fire, electrical shock, or other conditions which
may cause personal injury or property damage. Consult a
qualified installer, service agency, local gas supplier, or your
distributor or branch for information or assistance. The
qualified installer or agency must use only
factory-authorized and listed kits or accessories when
modifying this product.
Installing and servicing heating equipment can be hazardous due
to gas and electrical components. Only trained and qualified
personnel should install, repair, or service heating equipment.
Untrained personnel can perform basic maintenance functions
such as cleaning and replacing air filters. All other operations
must be performed by trained service personnel. When working
on heating equipment, observe precautions in literature, on tags,
and on labels attached to or shipped with unit and other safety
precautions that may apply.
These instructions cover the minimum requirements and conform
to existing national standards and safety codes. In some instances,
these instructions exceed certain local codes and ordinances,
especially those that may not have kept up with changing
residential construction practices. We require these instructions as
a minimum for a safe installation.
Wear safety glasses and work gloves. Have a fire extinguisher
available during start-up and adjustment procedures and service
calls.
Recognize safety information. This is the safety-alert symbol
z_. When you see this symbol on the furnace and in instructions
or manuals, be alert to the potential for personal injury.
Understand the signal words DANGER, WARNING, and
CAUTION. These words are used with the safety-alert symbol.
DANGER identifies the most serious hazards which will result in
severe personal injury or death. WARNING signifies a hazard
which could result in personal injury or death. CAUTION is used
to identify unsafe practices which may result in minor personal
injury or product and property damage. NOTE is used to
highlight suggestions which will result in enhanced installation,
reliability, or operation.
CUT HAZARD
Failure to follow this caution may result in personal injury.
Sheet metal parts may have sharp edges or burrs. Use care
and wear appropriate protective clothing and gloves when
handling parts.
TABLEOF CONTENTS
PAGE
IMPORTANT INFORMATION ......................... 2
SAFE INSTALLATION REQUIREMENTS ............... 5
COMBUSTION & VENTILATION AIR ................. 10
CONCENTRIC TERMINATION ....................... 30
GAS SUPPLY & PIPING ............................. 32
ELECTRICAL WIRING .............................. 35
DUCTWORK & FILTER ............................. 36
CHECKS & ADJUSTMENTS ......................... 38
FURNACE MAINTENANCE ......................... 40
SEQUENCE OF OPERATION & DIAGNOSTICS ......... 40

SAFEINSTALLATION
REQUIREMENTS
FIRE, EXPLOSION, AND ASPHYXIATION HAZARD
Failure to follow this warning could result in personal injury or
death.
Improper adjustment, alteration, service, maintenance or
installation could cause personal injury, death and/or
property damage.
Installation or repairs made by unqualified persons could
result in hazards to you and others. Installation MUST
cont_rm to local codes or, in the absence of local codes,
with codes of all governmental authorities having
jurisdiction.
The infi_rmation contained in this manual is intended tbr
use by a qualified service agency that is experienced in
such work, is familiar with all precautions and safety
procedures required in such work, and is equipped with
the proper tools and test instruments.
NOTE: This furnace is design-certified by the CSA
International (formerly AGA and CGA) for installation in the
United States and Canada. Refer to the appropriate codes, along
with this manual, for proper installation.
• Use only the type of gas approved for this furnace (see Rating
Plate on unit). Overfiring will result in failure of heat
exchanger and cause dangerous operation. (Furnaces can be
converted to Propane gas with approved kit.)
• Install this furnace only in a location and position as specified
in "Installation" of these instructions.
CARBON MONOXIDE POISONING HAZARD
Failure to follow this warning could result in personal injury or
death.
Do NOT install this furnace in DOWNFLOW applications.
• Provide adequate combustion and ventilation air to the furnace
as specified in" Combustion and Ventilation Air" of these
instructions.
• Combustion products must be discharged outdoors. Connect
this furnace to an approved vent system only, as specified in
"Vent and Combustion Air P@ing" of these instructions.
• Never test for gas leaks with an open flame. Use a
commercially available soap solution made specifically for the
detection of leaks to check all connections, as specified in
"Gas Supply and Piping, Final Check" of these instructions.
• Always install furnace to operate within the furnace's intended
temperature-rise range with a duct system which has an
external static pressure within the allowable range, as specified
in "Technical Support Manual" of these instructions. See
furnace rating plate.
• When a furnace is installed so that supply ducts carry air
circulated by the furnace to areas outside the space containing
the furnace, the return air shall also be handled by a duct(s)
sealed to the furnace casing and terminating outside the space
containing the furnace.
• A gas-fired furnace for installation in a residential garage must
be installed as specified in "Installation" of these instructions.
• This furnace is not to be used for temporary heating of
buildings or structures under construction.
• This furnace is NOT approved for installation in mobile
homes, trailers or recreation vehicles.
• Seal around supply and return air ducts.
• Install correct filter type and size.
• Unit MUST be installed so electrical components are protected
from direct contact with water.
SafetyRules
Your unit is built to provide many years of safe and dependable
service providing it is properly installed and maintained.
However, abuse and/or improper use can shorten the life of the
unit and create hazards for you, the owner.
The U.S. Consumer Product Safety Commission encourages
installation of carbon monoxide alarms. There can be various
sources of carbon monoxide in a building or dwelling. The
sources could be gas-fired clothes dryers, gas cooking stoves,
water heaters, furnaces, gas-fired fireplaces, wood fireplaces.
Carbon monoxide can cause bodily injury and/or death. Carbon
monoxide or "CO" is a colorless and odorless gas produced when
fuel is not burned completely or when the flame does not receive
sufficient oxygen.
Therefore, to help alert people of potentially dangerous carbon
monoxide levels, you should have a commercially available
carbon monoxide alarm that is listed by a nationally recognized
testing agency in accordance with Underwriters Laboratories Inc.
Standard for Single and Multiple Station Carbon Monoxide
Alarms, ANSI/UL 2034 or the CSA 6.19-01 Residential Carbon
Alarming Devices installed and maintained in the building or
dwelling concurrently with the gas-fired furnace installation (see
Note below). The alarm should be installed as recommended by
the alarm manufacturer's installation instructions.
There can be numerous sources of fire or smoke in a building or
dwelling. Fire or smoke can cause bodily injury, death, and/or
property damage. Therefore, in order to alert people of potentially
dangerous fire or smoke, you should have fire extinguisher and
smoke alarms listed by Underwriters Laboratories installed and
maintained in the building or dwelling (see Note below).
NOTE: The manufacturer of your furnace does not test any
alarms and makes no representations regarding any brand or type
of alarms.
To ensure safe and efficient operation of your unit, you should do
the following:
1. Thoroughly read this manual and labels on the unit.
This will help you understand how your unit operates and
the hazards involved with gas and electricity.
2. Do not use this unit if any part has been under water
Immediately call a qualified service technician to inspect
the unit and to replace any part of the control system and
any gas control which has been under water.
3. Never obstruct the vent grilles, or any ducts that
provide air to the unit. Air must be provided for proper
combustion and ventilation of flue gases.

FrozenWaterPipe Hazard Installation
WATER DAMAGE TO PROPERTY HAZARD
Failure to follow this caution may result in property damage.
Do not leave your home unattended for long periods during
freezing weather without turning off water supply and
draining water pipes or otherwise protecting against the risk
of frozen pipes and resultant damage.
Your furnace is designed solely to provide a safe and comfortable
living environment. The furnace is NOT designed to ensure that
water pipes will not freeze. It is equipped with several safety
devices that are designed to turn the furnace off and prevent it
from restarting in the event of various potentially unsafe
conditions.
If your furnace remains off for an extended time, the pipes in
your home could freeze and burst, resulting in water damage.
If the structure will be unattended during cold weather you should
take these precautions.
1. Turn off the water supply to the structure and drain the wa-
ter lines if possible and add an antifreeze for potable water
to drain traps and toilet tanks. Open faucets in appropriate
areas.
-or-
2. Have someone check the structure frequently during cold
weather to make sure it is warm enough to prevent pipes
from freezing. Instruct them on a service agency to call to
provide service, if required.
-or-
3. Install a reliable remote sensing device that will notify
somebody of freezing conditions within the home.
Winter Shutdown
If you go away during the winter months and do not leave the
heat on in your home, the plastic transition box and the
condensate trap on the furnace must be protected from freeze
damage. (See Fig. 10 through Fig. 17)
1. Disconnect the 5/8" OD rubber hose from the vent drain
fitting that is located downstream of the combustion
blower. Insert a funnel into the hose and pour four(4)
ounces of sanitary type (RV) antifreeze into the condensate
trap. Reconnect the 5/8" OD rubber hose to the stub on the
vent drain fitting. Secure with the hose clamp.
2. Disconnect the 3/4" OD rubber hose from the condensate
trap. Insert a funnel into the hose and and pour four(4)
ounces of sanitary type (RV) antifreeze into the plastic
Transition box. Squeeze the hose together near the end and
quickly reconnect the 3/4" OD rubber hose to the stub on
the condensate trap. Secure with the hose clamp.
When you return home, your furnace will be ready to start, as it is
not necessary to drain the antifreeze from the furnace.
CARBON MONOXIDE POISONING HAZARD
Failure to follow this warning could result in personal injury or
death.
This furnace can NOT be common vented or connected
to any type B, BW or L vent or vent connector, nor to
any portion of a factory-built or masonry chimney. If
this furnace is replacing a previously common-vented
turnace, it may be necessary to resize the existing vent
and chimney to prevent oversizing problems for the
other
remaining appliance(s). See Venting and Combustion Air
C_ec'k in Gas Vent Installation section. This furnace
MUST be vented to the outside.
LocationandClearances
1. Refer to Fig. 1 for typical installation and basic connecting
parts required. Refer to Fig. 4 for typical horizontal direct
vent installation and basic connecting parts required. Sup-
ply and return air plenums and duct are also required.
2. If furnace is a replacement, it is usually best to install the
furnace where the old one was. Choose the location or
evaluate the existing location based upon the minimum
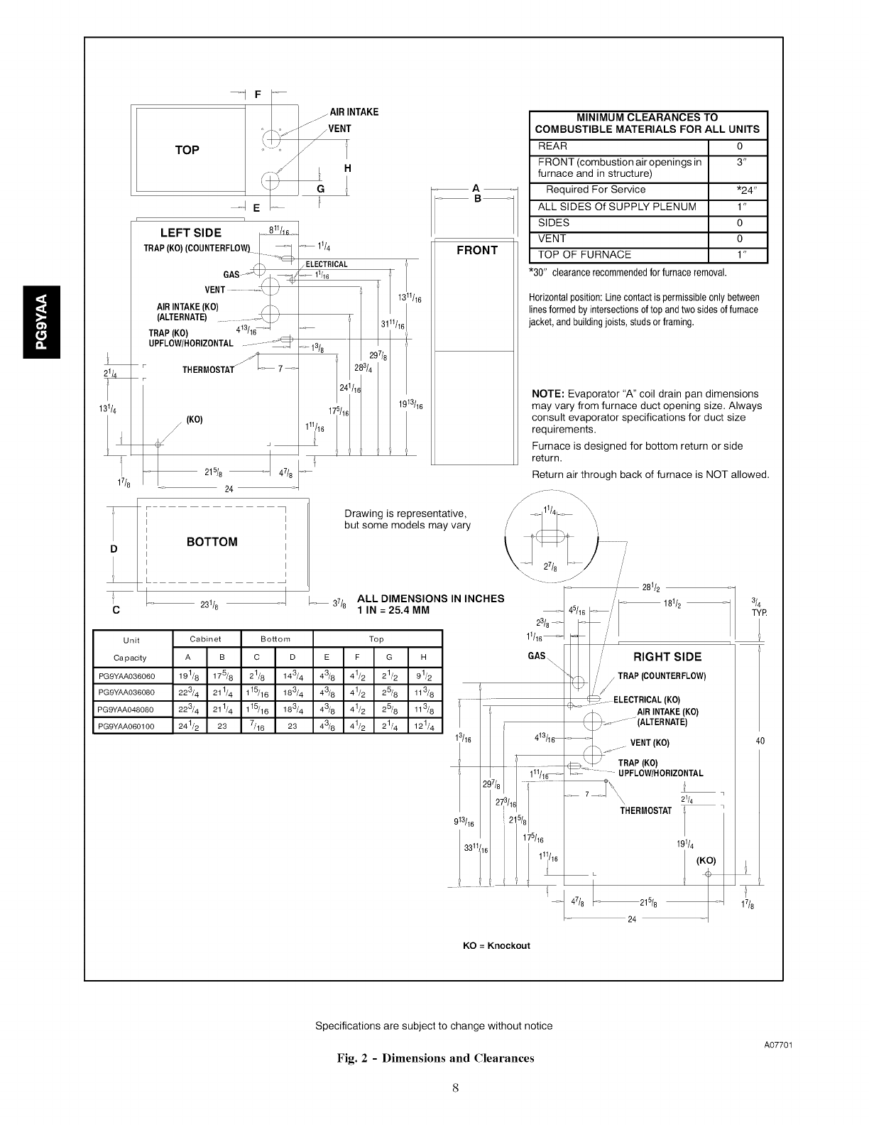
clearance and furnace dimensions (Fig. 2).
Aluminum or non-rusting shield recommended. (See
VentTerminationShieldingfordimensions).
8" Min.... '1=,,I _ ..... /_ Couplingonendsof
20' Max. 1_ #._ InletPipe(not /_exhaustpipe.Total
in same _ _ =_ usedon Single /pipe& couplingout-
atmospheric I[ Ill" Pipe model) sidestructure=8"
zone _L_ _ _)
Vent Pipes MUST be
supported Horizontally
and Vertically atmospheric
*Increaseminimumfrom 8" to 18"forcold climates(sustainedtemperatures0 ° F
andbelowfor24 or moreconsecutivehours).
A07700
Fig. 1 -Typical Upflow Installation

CARBON MONOXIDE POISONING HAZARD
Failure to follow this warning could result in personal injury or
death.
Do NOT operate furnace in a corrosive atmosphere containing
chlorine, fluorine or any other damaging chemicals, which
could shorten filrnace life.
Refer to Combustion &Ventilation Air section, Contaminated
Combustion Air for combustion air evaluation and remedy.
FROZEN AND BURST PIPE HAZARD
Failure to follow this caution may result in property damage.
Special precautions MUST be made is installing furnace in
an area which may drop below freezing. This can cause
improper operation or damage to equipment. If furnace
environment has the potential of freezing, the drain trap and
drain line must be protected. The use of electric heat tape or
RV antifreeze is recommended for these installations. (See
"Condensate Trap Freeze Protection Section")
Do NOT operate furnace in acorrosive atmosphere
containing chlorine, fluorine or any other damaging
chemicals. Refer to Combustion & Ventilation Air section,
Contaminated Combustion Air.
InstallationRequirements
CARBON MONOXIDE POISONING HAZARD
Failure to follow this warning could result in personal injury or
death.
Do NOT install this furnace in DOWNFLOW applications.
1. Install furnace level.
2. This furnace is NOT to be used for temporary heat of
buildings or structures under construction.
3. Install the vent pipes as short as practical. (See Gas Vent
Installation section).
4. Do NOT install furnace directly on carpeting, tile or other
combustible material other than wood flooring.
5. Maintain clearance for fire safety and servicing. A front
clearance of 24" (609.6 mm) required and 30" (762.0
mm)recommended for access to the burner, controls and
filter. See clearance requirements in Fig. 2.
6. Use a raised base if the floor is damp or wet at times.
7. Residential garage installations require:
• Burners and ignition sources installed at least 18" above the
floor.
• Furnace must be located or physically protected from possible
damage by a vehicle.
8. If the furnace is to be suspended from the floor joists in a
basement or a crawl space or the rafters in an attic, it is
necessary to use steel pipe straps or an angle iron frame to
attach the furnace. These straps should be attached to the
furnace with sheet metal screws and to the rafters or joists
with bolts. The preferred method is to use an angle iron
frame bolted to the rafters or joists.
9. Local codes may require a drain pan under the entire fur-
nace and condensate trap when the furnace is installed in
attic application.
This furnace may be used for construction heat provided that all
the following conditions are met:
• The furnace is permanently installed with all electrical wiring,
piping, venting and ducting installed according to these
installation instructions. A return air duct is provided, sealed
to the furnace casing, and terminated outside the space
containing the furnace. This prevents a negative pressure
condition as created by the circulating air blower, causing a
flame rollout and/or drawing combustion products into the
structure.
• The furnace is controlled by a thermostat. It may not be "hot
wired" to provide heat continuously to the structure without
thermostatic control.
• Clean outside air is provided for combustion. This is to
minimize the corrosive effects of adhesives, sealers and other
construction materials. It also prevents the entrainment of
drywall dust into combustion air, which can cause fouling and
plugging of furnace components.
• The temperature of the return air to the furnace is maintained
between 55 ° F (13 ° C) and 80 ° F (27 ° C), with no evening
setback or shutdown. The use of the furnace while the
structure is under construction is deemed to be intermittent
operation per our installation instructions.
• The air temperature rise is within the rated rise range on the
furnace rating plate, and the firing rate has been set to the
rating plate value.
• The filters used to clean the circulating air during the
construction process must be either changed or thoroughly
cleaned prior to occupancy.
• The furnace, ductwork and filters are cleaned as necessary to
remove drywall dust and construction debris from all HVAC
system components after construction is completed.
• After construction is complete, verify furnace operating
conditions including ignition, input rate, temperature rise and
venting according to these instructions.
Knockouts
CUT HAZARD
Failure to follow this caution may result in personal injury.
Sheet metal parts may have sharp edges or burrs. Use care
and wear appropriate clothing, safety glasses and gloves
when handling parts and servicing furnaces.
Use a hammer and screwdriver to strike a sharp blow (See Fig. 3)
directly to the knockout tie points or use a hammer in the upper
left corner of the desired knockout. Remove any burrs and sharp
edges.

....1F _°--
TOP
S ¸
t\
E"_
LEFT SIDE _-=_
TRAP(KO)(COUNTERFLOW) _ _-
GAS..... _-/_
VENT .....;_I/
AIRINTAKE(KO) Fl-\
(ALTERNATE) ........./\_/)
TRAP(KO) 413/16:'-I
• UPFLOW/HORIZONTAL ........ __
THERMOSTAT_Jt _ 7_ ....
(KO)
215/8 _
24
BOTTOM
/j AIR INTAKE
._1Z _VENT
_H
i
o_ 1114
/ELECTRICAL
t i 1311/1_
11/16
283/4
/
/241/1d I
6 1 /16
i 7 r
Unit
Ca p acity
PG9YAA036060
PG9YAA036080
PG9YAA048080
PGRYAA0601 O0
1
I
I
I
I
i
I
I
J
A
FRONT
MINIMUM CLEARANCES TO
COMBUSTIBLE MATERIALS FOR ALL UNITS
REAR 0
FRONT (combustion air openings in 3"
furnace and in structure)
Required For Service *24"
ALL SIDES Of SUPPLY PLENUM 1"
SIDES 0
VENT 0
TOP OF FURNACE 1"
"30" clearance recommended for furnace remq_val.
Horizontal position: Linecontact is permissible only between
lines formed by intersections of top and two sides of furnace
jacket, and building joists, studs or framing.
NOTE: Evaporator "A" coil drain pan dimensions
may vary from furnace duct opening size. Always
consult evaporator specifications for duct size
requirements.
Furnace is designed for bottom return or side
return.
Return air through back of furnace is NOT allowed,
Cabinet Bottom
A B C D
191/8 17_ 8 21/8 143/4
223/4 211/4 11_16 183/4
223/4 211/4 11_16 183/4
241/2 23 _16 23
Drawing is representative,
but some models may vary
_ 37/8 ALL DIMENSIONS IN INCHES
1IN=25.4MM
Top
E F G H
43/8 41/2 21/2 91/2
43/8 41/2 25/8 113/8
43/8 41/2 25/8 113/8
43/8 41/2 21/4 121/4
4
T ..........
li/6
297/8
281/2
_-- 181/2 _-
913/16
3311116 191/4
(KO)
_- 5/16
23/8--
11/16---_J ,,, ,
GAS\ RIGHT SIDE
/TRAP(COUNTERFLOW)
ELECTRICAL(KO)
\AIR INTAKE(KO)
_:.......... (ALTERNATE)
413/1 _ _> VENT(KO)
/-- _j, ......
....... _'\ /TRAP(KO)
111116-- F_ ...... UPFLOW/HORIZONTAL
....7 ......... _\\
\ 21/4
273/16 THERMOSTAT
15/8
175/16
11]116
I -- t 47/8 - 215/8
/-'_ 24
3/,
T'
n
40
17/8
KO = Knockout
Specifications are subject to change without notice
Fig. 2 -Dimensions and Clearances
A07701

/
"\ .//
A07702
Fig. 3 -Hammer and Screwdriver used for Knockout
NOTE: If a knockout does not come out after two sharp blows,
pull and snip as needed to remove the knockout.
InstallationPositions
This furnace can be installed in an upflow or horizontal (either
left or right) airflow position. DO NOT install this furnace in the
downflow position or on its back. For the upflow position, the
return air ductwork can be attached to either the left or right side
panel and/or the bottom. For horizontal positions, the return air
ductwork must be attached to the bottom:
ULC-$636. ULC-$636 certified plastic vent system material or
the components of ULC-$636 certified vent systems must not be
interchanged with other vent systems or unlisted pipe/fittings.
Vent components supplied with the furnace and components in
factory authorized vent kits may be used with ULC-$636
certified vent systems.
The ULC-$636 certified plastic components, and specified
primers and glues of the certified system must be from a single
system manufacturer and not intermixed with other system
manufacturer's vent system parts.
The first 3 ft. (900 mm) of the venting system must be readily
accessible for inspection.
In some provinces the combustion air system may also be
required to be ULC-$636 certified.
The vent and combustion air pipes attach to the furnace through
the top panel or to the alternate locations on the furnace side
panels.
Note: Repositioning of the combustion blower is required for the
vent pipe connection to the furnace through the "right side"
panel. See "Vent and Combustion Air Piping" section for further
details.
HorizontalFurnaceInstallation
Inlet Pipe(not used onSingle Pipe model)
Vent
CARBON MONOXIDE POISONING HAZARD
Failure to follow this warning could result in personal injury or
death.
Do NOT install this furnace in DOWNFLOW applications.
Condensate
Trap
FurnaceInstallationConsiderations
The installation of the furnace for a given application will dictate
the position of the furnace, the airflow, ductwork connections,
vent and combustion air piping. Consideration must be given to
the following:
CondensateTrapand DrainLines
The supplied condensate trap must be attached to the furnace side
panel on either the left or right side. For horizontal installations,
the drain trap is vertically attached to the side panel below the
furnace. A minimum clearance of 6" below the furnace is
required for the condensate trap. Downward slope of the
condensate drain line from the condensate trap to the drain
location must be provided. Adequate freeze protection of the
drain trap and the drain line must be provided. See "Condensate
Drain Trap" section for further details.
Leveling
Proper leveling of the furnace must be provided to insure proper
drainage of the condensate from the furnace. The furnace must be
level to within 1/4" (6.35 mm) from front to back and from side to
side for upflow installations or top to bottom for horizontal
installations.
Ventand CombustionAir Connections
For venting information literature, contact www.cac-bdp.com
with the complete model and serial number of the furnace.
NOTE: Furnaces installed in Canada must use vent systems that
are certified to the standard for Type BH Gas Venting Systems,
NOTE:6"bottomclearancerequiredfor condensatetrap.
Fig. 4 - Typical Horizontal Installation
A07703
This furnace can be installed horizontally in an attic, basement,
crawl space, alcove, or suspended from a ceiling in a basement or
utility room. See Fig. 4. Do not install furnace on its back or in
the reverse airflow positions as safety control operation will be
adversely affected.
If the furnace is to be installed in a crawl space, consult local
codes. A suitable concrete pad or blocks are recommended for
crawl space installation on the ground.
NOTE: 6" bottom clearance required for condensate trap.
Twenty four (24) inches between the front of the furnace and
adjacent construction or other appliances MUST be maintained
for service clearance.
Keep all insulating materials clear from louvered door. Insulating
materials may be combustible.
The horizontal furnaces may be installed directly on combustible
wood flooring or supports as long as all required furnace
clearances are met. See Fig. 4.

[i
GasVent
ThisinstallationNOTapprovedinCanada GasVent
GableVent
,_'.'_Atern_a ,etAir(1, _ j Gab,eVent ,__1L_'_
_ _" GasVent _Outlet__J II II I] II-- Outlet
I_:-- _II J_VentilatedAttic_ Air(l) _I II _ _;_Air(_)
OutletAir (1) I I SoffitVent I11"11 _"_- I II _| I I I I
I I _lr II TopAbovelnsulation"_ I J-_ _I I I I
n II I-IFII OutletAir(1) _fltVent I.nleL _F ...... I b,I _ _J_ Inlet
I I _ _ I I I F"l Minimum One Inlet and One Outlet Air Supply is Required
_ m= I I I I I Inlet May beinanyCombinationShown
_m E Inlet J I........I I.÷°°1 A,r(2) Inlet AirOpeningMustbe Within12"of floor
VentilatedCrawlSpace i..J I I_T_3 --
Air(1) _._ I 1'_'1 [_ -- OutletAirOpening MustbeWithin12"ofceiling
(1)1SquareInchper4000BTUH
(2)1SquareInchper2000BTUH
A07704
Fig. 5 -Outside Air
(This is ONLY a guide. Subject to codes of country having jurisdiction).
This furnace MUST NOT be installed directly on carpeting or
tile or other combustible material other than wood flooring or
supports.
COMBUSTION& VENTILATIONAIR
For SinglePipeInstallation
CARBON MONOXIDE POISONING HAZARD
Failure to follow this warning could result in personal injury or
death.
Use methods described here to provide combustion and
ventilation air.
Furnaces require ventilation openings to provide sufficient air for
proper combustion and ventilation of flue gases. All duct or
openings for supplying combustion and ventilation air must
comply with the gas codes, or in the absence of local codes, the
applicable national codes.
Combustion and ventilation air must be supplied in accordance
with one of the following:
NOTE: The Combustion & Ventilation Air Section in this
document, uses tables and information from the ANSI
Z223.1/NFPA 54. For use in Canada, use CSA B149.1 for this
information.
1. Section 9.3, Air for Combustion and Ventilation, of the
National Fuel Gas Code, (NFGC), ANSI
Z223.1-2006/NFPA 54-2006 in the U.S.,
2. Sections 8.2, 8.3, 8.5, 8.6, 8.7, and 8.8 of National Stand-
ard of Canada, Natural Gas and Propane Installation Code
(NSCNGPIC), CSA B149.1-05 in Canada,
3. Applicable provisions of the local building code.
This furnace can NOT be common vented or connected to any
type B, BW or L vent or vent connector, nor to any portion of a
factory-built or masonry chimney. Multistory venting is NOT
permitted. If this furnace is replacing a previously
common-vented furnace, it may be necessary to resize the
existing vent and chimney to prevent oversizing problems for the
other remaining appliance(s). See "Venting and Combustion Air
For horizontal installation over a finished living space. A field
fabricated auxiliary drain pan with drain pipe is required to
prevent damage by overflow due to blocked condensate drain.
Check" in this section. This furnace MUST be vented to the
outside.
When the installation is complete, check that all appliances have
adequate combustion air and are venting properly. See Venting
And Combustion Air Check in "Gas Vent Installation" Section in
this manual.
OutdoorCombustionAir Method
A space having less than 50 cubic feet per 1,000 BTUH input
rating for all gas appliances installed in the space requires
outdoor air for combustion and ventilation.
Air Openingsand ConnectingDucts
1. Total input rating for all gas appliances in the space
MUST be considered when determining free area of open-
ings.
2. Connect ducts or openings directly to the outdoors.
3. When screens are used to cover openings, the openings
MUST be no smaller than 1/4" (6.35 mm) mesh.
4. The minimum dimension of air ducts MUST NOT be less
than 3".
5. When sizing a grille, louver, or screen use the free area of
opening. If free area is NOT stamped or marked on grill or
louver, assume a 20% free area for wood and 60% for met-
al. Screens shall have a mesh size not smaller than 1/4"
(6.35 mm) .
ConfinedSpaceInstallation
NOTE: A confined space is defined as an area with less than 50
cubic feet per 1,000 BTUH input rating for all gas appliances
installed in the area.
Requirements
1. Provide the space with sufficient air for proper combustion
and ventilation of flue gases using horizontal or vertical
ducts or openings.
10

2.Fig.5illustrateshowtoprovidecombustionandventila-
tionairwhentwopermanentopenings,oneinletandone
outlet,areused.
f. OneopeningMUSTcommencewithin12"ofthefloor
andthesecondopeningMUSTcommencewithin12"
oftheceiling.
g.SizeopeningsandductsperTable1.
h.Horizontalductopeningsrequire1squareinchoffree
areaper2,000BTUH(1,100mmZ/kW)ofcombined
inputforallgasappliancesinthespace(seeTable1).
i. Verticalductopeningsoropeningsdirectlycommunic-
atingwiththeoutdoorsrequire1squareinchoffree
areaper4,000BTUH(550mm2/kW)forcombined
inputofallgasappliancesinthespace(seeTable1).
3.Whenonepermanentoutdooropeningisused,theopening
requires:
a.1sq.inoffreeareaper3,000BTUH(700mmZ/kW)
forcombinedinputofallgasappliancesinthespace
(seeTable1) and
b.notlessthanthesumoftheareasofallventconnect-
orsinthespace.
Theopeningshallcommencewithin12"of thetopof the
enclosure.Appliancesshallhaveclearancesof atleast1"from
thesidesandbackand6" fromthefront.Theopeningshall
directlycommunicatewiththeoutdoorsorshallcommunicate
throughaverticalorhorizontalducttotheoutdoorsorspaces
(crawlorattic)thatfreelycommunicatewiththeoutdoors.
4.CombinationofIndoorandOutdoorAirshallhave:
a.IndooropeningsthatcomplywiththeIndoorCom-
bustionAirMethodbelowand
b.OutdooropeningslocatedasrequiredintheOutdoor
CombustionAirMethodaboveand
c.Outdooropeningssizedasfollows.
(3.)CalculatetheRatioofallIndoorSpacevolume
dividedbyrequiredvolumeforIndoorCombus-
tion Air Method.
(4.) Outdoor opening size reduction Factor is 1 minus
the Ratio in 1) above.
(5.) Minimum size of Outdoor openings shall be the
size required in Outdoor Combustion Air Meth-
od above multiplied by reduction Factor.
BTUH MinimumFree AreaRequiredfor EachOpeningor Ductto Outdoors
Input TwoHorizontalDucts SingleOpening TwoVerticalDuctsor Openings RoundDuct
Rating (sq.in./2,000BTUH) (sq.in./3,000BTUH) (sq.in./4,000BTUH) (sq.in./4,000 BTUH)
60,000 30 sq.in. 20 sq.in. 15 sq.in. 5"
80,000 40sq. in. 26.7sq.in. 20.0 sq.in. 5"
100,000 50 sq. in. 33.3sq.in. 25 sq.in. 6"
EXAMPLE: Determining Free Area
Furnace Water Heater Total Input
100,000 + 30,000 = (130,000 + 4,000) = 32.5 Sq. In. Vertical
Furnace Water Heater Total Input
100,000 + 30,000 = (130,000 ÷ 2,000) = 65 Sq. In. Horizontal
Table 1-Free Area
IndoorCombustionAir (UnconfinedSpace)
CARBON MONOXIDE POISONING HAZARD
Failure to follow this warning could result in personal injury or
death.
Most homes will require additional air from outdoors for
combustion and ventilation. A space with at least 50 cubic
feet per 1,000 Btuh Input rating or homes with tight
construction may need outdoor air, supplied through ducts, to
supplement air infiltration for proper combustion and
ventilation of flue gasses.
Standard and Known-Air-Infiltration Rate Methods
© NFPA&AGA
Indoor air is permitted for combustion and ventilation, if the
Standard or Known-Air-Infiltration Rate Method is used.
The Standard Method may be used, if the space has no less
volume than 50 cubic feet per 1,000 BTUH input rating for all
gas appliances installed in the space. The standard method
permits indoor air to be used for combustion and ventilation air.
The Known Air Infiltration Rate Method shall be used if the
infiltration rate is known to be less than 0.40 air changes per hour
(ACH) and equal to or greater than 0.10 ACH. Infiltration rates
greater than 0.60 ACH shall not be used. The minimum required
volume of the space varies with the number of ACH and shall be
determined per Table 2 or Equations 1and 2. Determine the
minimum required volume for each appliance in the space, and
add the volumes together to get the total minimum required
volume for the space.
CARBON MONOXIDE POISONING HAZARD
Failure to supply additional air by means of ventilation grilles
or ducts could result in personal injury or death.
An unconfined space or homes with tight construction may not
have adequate air infiltration for proper combustion and
ventilation of flue gasses. Most homes will require additional
air.
11

OtherThan Fan-AssistedTotal Fan-assistedTotal (1,000'sBtuh)
(1,000Btuh)
ACH 30 40 50 50 75 100 125
0,60 1,050 1,400 1,750 1,250 1,875 2,500 3,125
0,50 1,260 1,680 2,100 1,500 2,250 3,000 3,750
0,40 1,575 2,100 2,625 1,875 2,813 3,750 4,688
0,30 2,100 2,800 3,500 2,500 3,750 5,000 6,250
0,20 3,150 4,200 5,250 3,750 5,625 7,500 9,375
0,10 6,300 8,400 10,500 7,500 11,250 15,000 18,750
0,00 NP NP NP NP NP NP NP
Table 2-Minimum Space Volume for 100% Combustion and Ventilation Air from Indoors (ft 3)
HNP =Not Permitted
NO TAG Minimum Space Volumes were determined by using
the following equations from the National Fuel Gas (?ode ANSI
Z223.1/NFPA 54-2006, 9.3.2.2:
1. For appliances other than fan-assisted appliances (such
as a draft hood-equipped water heater), calculate using the
following equation:
-- ACH 1000 Btu /hr
2. For fan-assisted appliances (such as this furnace), calcu-
late using the following equation:
Required Volume fan> 15ft3 (- If an )
ACH 1000 Btu /hr
where:
Iother = all appliances other than fan-assisted input in Btu
per hour
Ifan = fan-assisted appliance input in Btu per hour
ACH = air change per hour (percent of volume of space
exchanged per hour, expressed as a decimal)
3. For purposes of this calculation, an infiltration rate greater
than 0.60 ACH shall not be used in the equations above.
The following requirements apply to the Standard Method and to
the Known Air Infiltration Rate Method.
• Adjoining rooms can be considered part of a space, if there are
no closeable doors between rooms.
• Combining spaces on the same story. Each opening shall have
a minimum free area of at least 1 in.2/1,000 BTUH (2,200
mm2/kW) of the total input rating of all appliances in the space
but not less than 100 in. 2 (0.06 m2). One opening shall
commence within 12 in. (304.8 mm) of the top, and one
opening shall commence within 12 in. (304.8 mm) of the
bottom, of the enclosure. The minimum dimension of air
openings shall not be less than 3 in. (76.2 mm).
• Combining spaces in different stories. The volumes of spaces
on different stories shall be considered as communicating
spaces where such spaces are connected by one or more
openings in doors or floors having a total minimum free area of
2 in.2/1,000 BTUH (4,400 mm2/kW) of total input rating of all
appliances.
• An attic or crawl space may be considered a space that freely
communicates with the outdoors provided there are adequate
ventilation openings directly to outdoors. Openings MUST
remain open and NOT have any means of being closed off.
Ventilation openings to outdoors MUST be at least 1 square
inch of free area per 4,000 BTUH (550 mm2/kW) of total input
rating for all gas appliances in the space.
• In spaces that use the Indoor Combustion Air Method,
infiltration should be adequate to provide air for combustion,
ventilation and dilution of flue gases. However, in buildings
with unusually tight construction, additional air MUST be
provided using the methods described in section titled Outdoor
Combustion Air Method:
• Unusually tight construction is defined as Construction with:
1. Walls and ceilings exposed to the outdoors have a continu-
ous, sealed vapor barrier. Openings are gasketed or sealed
and
2. Doors and openable windows are weather stripped and
3. Other openings are caulked or sealed. These include joints
around window and door frames, between sole plates and
floors, between wall-ceiling joints, between wall panels, at
penetrations for plumbing, electrical and gas lines, etc.
VentilationAir
Some provincial codes and local municipalities require
ventilation or make-up air be brought into the conditioned space
as replacement air. Whichever method is used, the mixed return
air temperature across the heat exchanger MUST not fall below
60 ° so that flue gases will not condense excessively in the heat
exchanger. Excessive condensation will shorten the life of the
heat exchanger and possibly void your warranty.
Ventingand CombustionAir Check
NOTE: If this installation replaces an existing furnace from a
commonly vented system, the original venting system may no
longer be sized to properly vent the attached appliances. An
improperly sized venting system may cause the formation of
condensate in the vent and the leakage or spillage of vent gases.
To make sure there is adequate combustion air for all appliances,
MAKE THE FOLLOWING CHECK.
Vent Pipe ._ DraftHood
/P%
TYaPieCa/G:tSer_ ]1! \ _...._
I""_ IMatch
Fig. 6 - Vent Check
A07688
12

The following information is supplied to allow the installer to
make adjustments to the setup of existing appliances, IF
REQUIRED, based on good trade practices, local codes, and
good judgement of the installer. Manufacturer does NOT take
responsibility for modifications made to existing equipment.
the existing vent and chimney to prevent oversizing problems for
the other remaining appliance(s). See "Venting and Combustion
Air Check" in this section. This furnace MUST be vented to the
outside.
VENTAND COMBUSTIONAIRPIPING
CARBON MONOXIDE POISONING HAZARD
Failure to tbllow the steps outlined below tbr each
appliance connected to the venting system being placed
into operation, could result in carbon monoxide
poisoning or death:
The tbllowing steps shall be followed t_r each appliance
connected to the venting system being placed into
operation, while all other appliances connected to the
venting system are not in operation:
1. Seal any unused openings in the venting system.
2. Inspect the venting system for proper size and
horizontal pitch, as required in the National Fuel Gas
Code, ANSI Z223.1/NFPA 54 or CSA B149.1, Natural
Gas and Propane Installation Code and these
instructions. Determine that there is no blockage or
restriction, leakage, corrosion and other deficiencies
which could cause an unsafe condition.
3. As far as practical, close all building doors and
windows and all doors between the space in which the
appliance(s) connected to the venting system are
located and other spaces of the building.
4. Close fireplace dampers.
5. Turn on clothes dryers and any appliance not
connected to the venting system. Turn on any exhaust
fans, such as range hoods and bathroom exhausts, so
they are operating at maximum speed. Do not operate
a summer exhaust fan.
6. Follow the lighting instructions. Place the appliance
being inspected into operation. Adjust the thermostat
so appliance is operating continuously.
7. Test for spillage from draft hood equipped appliances
at the draft hood relief opening after 5 minutes of
main burner operation. Use the flame of a match or
candle. (Fig. 6)
8. If improper venting is observed, during any of the
above tests, the venting system must be corrected in
accordance with the National Fuel Gas Code, ANSI
Z223.1/NFPA 54 and/or CSA B149.1, Natural Gas and
Propane Installation Code.
9. After it has been determined that each appliance
connected to the venting system properly vents when
tested as outlined above, return doors, windows,
exhaust fans, fireplace dampers and any other
gas-fired burning appliance to their previous
conditions of use.
ForTwo PipeInstallation(DirectVent)
This furnace can NOT be common vented or connected to any
type B, BW or L vent or vent connector, nor to any portion of a
factory-built or masonry chimney. If this furnace is replacing a
previously common-vented furnace, it may be necessary to resize
CARBON MONOXIDE POISONING HAZARD
Failure to follow this warning could result in personal injury or
death.
Use methods described here to provide combustion and
ventilation air.
Dual Certified(PG9YAAModels)
This furnace is certified as a category IV appliance. This furnace
can be installed as a direct vent furnace using outside air for
combustion or the furnace can use air from inside the structure
for combustion. The INLET air pipe is optional. If combustion
air comes from inside the structure, adequate make up air MUST
be provided to compensate for oxygen burned. See Confined
Space Installation in the Combustion and Ventilation Air
chapter. If combustion air is drawn from outside the structure, it
MUST be taken from the same atmospheric pressure zone as the
vent pipe.
ContaminatedCombustionAir
Installations in certain areas or types of structures will increase
the exposure to chemicals or halogens that may harm the furnace.
The following areas or types of structures may contain or have
exposure to the substances listed below. The installation must be
evaluated carefully as it may be necessary to provide outside air
for combustion.
• Commercial buildings.
• Buildings with indoor pools.
• Furnaces installed in laundry rooms.
• Furnaces installed in hobby or craft rooms.
• Furnaces installed near chemical storage areas.
• Permanent wave solutions for hair.
• Chlorinated waxes and cleaners.
• Chlorine based swimming pool chemicals.
• Water softening chemicals.
• De-icing salts or chemicals.
• Carbon tetrachloride.
• Halogen type refrigerants.
• Cleaning solvents (such as perchloroethylene).
• Printing inks, paint removers, varnishes, etc.
• Hydrochloric acid.
• Sulfuric Acid.
• Solvent cements and glues.
• Antistatic fabric softeners for clothes dryers.
• Masonry acid washing materials.
Vent and CombustionAir PipingGuidelines
This furnace is approved for venting with Schedule 40 PVC,
CPVC, ABS fittings, and Cellular Core and SDR-26 PVC pipe.
13

Applicable ASTM Standards for Vent Materials
Cell
Materi- Sch.40 SDR Solvent
als Pipe Pipe Core Fittings Primer Cement
Pipe
D2468
ABS D1527 F628 & -- D2235
D2661
D2466
PVC D1785 D224t F891 & F656 D2564
D2665
CPVC F44t F442 -- F438 -- F493
ABS
to .......... D3138
PVC
NOTE:
1. In Canada, all pipe, fittings &cements must conform to
applicable CSA standards or to local codes having juris-
diction.
2. Only use solvent cements that are marked for use with the
specific venting material.
3. ABS to PVC transition joints REQUIRE a special solvent
cement that meets the requirements of ASTM D3138.
4. Refer to ASTM D2855 for general procedure to use for
cementing plastic pipe and fittings.
NOTE: In order to create a seal that allows future removal of
pipe, RTV sealant MUST be used on the inlet pipe where it
joins to the furnace.
NOTE: All vent piping MUST be installed in compliance with
local codes or ordinances, these instructions, good trade practices,
and codes of country having jurisdiction.
1. Determine the best routing and termination for the vent
pipe and air inlet pipe by referring to all of the instructions
and guidelines in this Section.
2. Determine the size required for the vent pipe and air inlet
pipe.
3. Loosely assemble all venting parts without adhesive (pipe
joint cement) for correct fit before final assembly.
4. Furnace shall be installed so as to prevent the accumula-
tion of condensate.
5. Use of vertical piping is preferred because there will be
some moisture in the flue gases that may condense as it
leaves the vent pipe (See Instructions For Horizontal
Vents).
6. The vertical vent pipe MUST be supported so that no
weight is allowed to rest on the combustion blower.
7. Exhaust vent piping or air inlet piping diameter MUST
NOT be reduced.
8. All exhaust vent piping from the furnace to termination
MUST slope upwards. A minimum of 1/4" (6.35 mm) per
foot of run is required to properly return condensate to the
furnace drain system.
9. Use DWV type long radius elbows whenever possible, as
they provide for the minimum slope on horizontal runs and
they provide less resistance in the vent system. If DWV
elbows cannot be used, use two, 45 ° elbows when pos-
sible. On horizontal runs the elbows can be slightly mis-
aligned to provide the correct slope.
10. All horizontal pipe runs MUST be supported at least every
five feet with galvanized strap or other rust resistant ma-
terial. NO sags or dips are permitted.
11. All vertical pipe runs MUST be supported every six feet
where accessible.
12. The minimum pipe run length is 2' (.6 M).
13. The piping can be run in the same chase or adjacent to
supply or vent pipe for water supply or waste plumbing. It
can also be run in the same chase with a vent from another
90+ furnace.
NOTE: In NO case can the piping be run in a chase where
temperatures can exceed 140 ° F (60 ° C). or where radiated heat
from adjacent surfaces would exceed 140 ° F (60 ° C).
14. The vent outlet MUST be installed to terminate in the
same atmospheric pressure zone as the combustion air in-
let.
15. The vent system can be installed in an existing unused
chimney provided that:
• Both the exhaust vent and air intake run the length of the
chimney.
• No other gas fired appliance or fireplace (solid fuel) is vented
into the chimney.
• The top of the chimney MUST be sealed flush or crowned up
to seal against rain or melting snow so ONLY the piping
protrudes.
• The termination clearances shown in Fig. 7 and 8 are
maintained.
16. Furnace applications with vertical vents requiring vent dia-
meter increaser fittings must have increaser fittings in-
stalled in vertical portion of the vent. Condensate will be
trapped in the vent if the vent diameter is increased prior
to having an elbow turned upward. This could cause nuis-
ance tripping of the pressure switch.
CombustionAir andVent PipingInsulation
Guidelines
NOTE: Use closed cell, neoprene insulation or equivalent. If
Fiberglass or equivalent insulation is used it must have a vapor
barrier. Use R values of 7 up to 10', (2.1 - 3.0 M) R-11 if
exposure exceeds 10'. If Fiberglass insulation is used, exterior to
the structure, the pipe MUST be boxed in and sealed against
moisture.
1. When the vent or combustion air pipe height above the
roof exceeds 30"(762.0 mm), or if an exterior vertical riser
is used on a horizontal vent to get above snow levels, the
exterior portion MUST be insulated.
2. When combustion air inlet piping is installed above a sus-
pended ceiling, the pipe MUST be insulated with moisture
resistant insulation such as Armaflex or other equivalent
type of insulation.
3. Insulate combustion air inlet piping when run in warm, hu-
mid spaces.
SizingCombustionAir andVent Pipe
Consult Table 3 to select the proper diameter exhaust and
combustion air piping. Exhaust and combustion air piping is sized
for each furnace BTUH size based on total lineal vent length (on
inlet or outlet side), and number of 90 °elbows required. Two 45 °
elbows can be substituted for one 90 °elbow. The elbow or
elbows used for vent termination outside the structure ARE
counted, including elbows needed to bring termination above
expected snow levels. The elbow inside the furnace on the
PG9YAA IS NOT included in the count.
14

PIPE DIAMETER TABLE
PG9YAA MODEL
60,000 BTUH Furnaces
40' & (5) 90 ° elbows with 2" PVC pipe or
70' & (5) 90 ° elbows with 3" PVC pipe
80,000 BTUH Furnace
40' & (5) 90 ° elbows with 2" PVC pipe or
40' & (5) 90 ° elbows with 3" PVC pipe
100,000 BTUH Furnace
30' & (4) 90 ° elbows with 2" PVC pipe or
40' & (5) 90 ° elbows with 3" PVC pipe
Elbows are DWV Long Radius Type for 2" and 3" vents.
If morethan five elbows are required, reduce the length of both the
inlet and exhaust pipes 5' for each additional elbow used. If less than
five elbows are required, the length can be INCREASED by 5' for each
additional elbow NOT used.
Table 3-Pipe Diameter Table
NOTE: It is allowable to use larger diameter pipe and fitting
than shown in the tables but not smaller diameters than shown.
For "Concentric Termination Kit" Venting see Table 4 in
this manual.
Vent Termination Clearances
CARBON MONOXIDE POISONING HAZARD
Failure to follow this warning could result in personal injury or
death.
Inlet and outlet pipes may NOT be vented directly above each
other.
1. Determine termination locations based on clearances spe-
cified in following steps and as shown in Fig. 7, Fig. 8,
Fig. 19 through Fig. 27.
For "Concentric Termination Kit" clearances, see Fig. 28
through Fig. 33 in this manual. 1
[t
2. For Single Pipe Installation refer to Fig. 8 for vent termin-
ation clearances.
3. For Direct Vent Installation refer to Fig. 7 for vent termin-
ation clearances.
15

V_ VENT TERMINAL
\ ..........: ...........
................. gS_24_JS-2
_WHERE _RMI_JOL _ NOT PE_D
F
G
H
i
J
C_earance to an o,_ts_ _
Oe_ra_ to _ taste
e_ m_,sr o__ser_ _u_ _m_
C_ to _os _ator _nt _
Ct_n_e _ nor_m_a_ _r S_y ini_to_jI1@ng 12 inches (30 cm) for applieances > 10,000 Btu h(3 kW) 9[rtc_-_ (_ cm) for _p]@_ >10,_ B_h (3_%_) and
and <._100,000 Btuh(3OkW), 36 inches (91 cm) for s 50,_ @u_h(15kW), i2 ir_es _._l_m_ for _m'_
_ppliances > 100,000 Btuh(3OkW) _"_000 _h (15_/V)
Fig. 7-Direct Vent Termination Clearance
A06675
16

[_ VENTTERMINAL _X_AIR SUPPLY INLET E_ AREAWHERE TERMINAL IS NOT PERMITED
Item Clearance Descriptions
A Clearance above grade, veranda, porch, deck, balcony, or
anticipated snow level
B Clearance to a window or door that may be opened
C
D
E
F
G
H
I
J
K
L
M
Clearance to a permanently closed window
Vertical clearance to a ventilated soffit located above the
terminal within a horizontal distance of 2'(61cm) from the
centerline of the terminal
Clearance to an unventilated soffit
Clearance to an outside corner
Clearance to an inside corner
Clearance to each side of the centerline extended above
electrical meter or gas service regulator assembly
Clearance to service regulator vent outlet
Clearance to non-mechanical air supply inlet to building or
the combustion air inlet to any other appliance
Clearance to a mechanical air supply inlet
Clearance under a veranda, porch, deck, or balcony
Canadian Installation (1)
12 inches (30cm) #
6 inches (15 cm) for appliances -< 10,000 Btuh (3 kW)
12 inches ( 30 cm) for appliances > 10,000 Btuh (3 kW0)
and -< 100,000 Btuh (30 kW), 36 inches (91 cm) for
appliances > 100,000 Btuh (30 kW)
3 feet (91 cm) within 15 feet(4.5 m) above the meter/regulator
assembly
3 feet (91 cm)
6 inches (15 cm) for appliances -<10,000 Btuh (3 kW)
12 inches ( 30 cm) for appliances > 10,000 Btuh (3 kW0)
and -<100,000 Btuh (30 kW)
36 inches (91 cm) for appliances > 100,000 Btuh (30 kW)
6 feet (1.83 m)
12 inches (30 cm) +
Clearance to each side of the centerline extended above or
below vent terminal of the furnace to a dryer or water heater
vent, or other appliance's direct vent intake or exhaust.
N Clearance to the vent terminal of a dryer vent, water heater
vent, or other appliances direct vent intake or exhaust.
O Clearance from a plumbing vent stack
p Clearance above paved sidewalk or paved 7 feet (2.13m)**
driveway located on public property
(1.) In accordance with the current CSA B149.1, Natural Gas and Propane Installation Code
(2.) In accordance with the current ANSI Z223.1/NFPA 54, National Fuel Gas Code
# 18" (46 cm) above roof surface
U.S. Installation (2)
12 inches (30 cm)
4 feet(1.2 m) below or to the side of the opening. 1 foot(30 cm',
above the opening.
3 feet (91 cm) within 15 feet (4.5 m) above the meter/regulator
assembly
4 feet (1.2 m) below or to the side of opening: 1 foot (30 cm)
above opening.
3 feet(91 cm) above if within 10 feet (3 m horizontally)
7 feet (2.13m)
+ Permitted only if veranda, porch, deck, or balcony is fully open on a minimum of two sides beneath the floor.
For clearances not specified in ANSI Z223.1/NFPA 54 or CSA B 149.1, clearances shall be in accordance with local installation codes and the requirements of the gas supplier and the
Manufacturer's installation instructions.
** A vent shall not terminate above a sidewalk or paved driveway that is located between two single family dwellings and serves both dwellings.
Notes:
1. The vent for this appliance shall not terminate
a. Over public walkways; or
b. Near soffit vents or crawl space vents or other areas where condensate or vapor could create a nusiance or hazard or property damage; or
c. Where condensate vapor could cause damage or could be detrimental to the operation of regulators, relief valves, or other equipment.
2. When locating vent terminations, consideration must be given to prevailing winds, location, and other conditions which may cause recirculation of the combustiob products of adjacent vents.
Recirculation can cause poor combustion, inlet condensate problems, and accelerated corrosion of the heat exchangers.
3 Avoid venting under a deck or large overhang. Recimulation could occur and cause performance or system problems.
Fig. 8 - Other than Direct Vent Termination Clearance
17

CondensateDrainTrap
This furnace removes both sensible and latent heat from the
products of combustion. Removal of the latent heat results in
condensation of the water vapor. The condensate is removed from
the furnace through the drains in the plastic transition and the
vent fitting. The drains connect to the externally mounted
condensate drain trap on the left or right side of the furnace.
The startup of a new furnace will involve a cycle or two of the
furnace to properly prime the condensate trap with water. Until
the trap is fully primed, some condensate will be pulled into the
combustion blower. The furnace may cycle on the pressure switch
connected to the plastic transition box due to condensate buildup.
After the trap is primed, the condensate will start draining from
the furnace. The combustion blower will clear out any remaining
condensate in the blower housing through the vent fitting
downstream of the blower. Note that the condensate trap can also
be primed by pouring water into the 1/2" drain hose. Remove
the1/2" ID drain hose from either the gutter or the white PVC tee
trap. Using a funnel pour eight (8) ounces of water into 1/2" ID
drain hose. Water will flow through the drain hose and into the
condensate drain trap. This will prime both the vent and the
transition sides of the trap. Reconnect the 1/2" ID drain hose to
the original component, either the gutter or the PVC tee trap.
The condensate drain trap supplied with the furnace MUST be
used. The drain connection on the condensate drain trap is sized
for 3/4" PVC or CPVC pipe, however alternate 1/2" CPVC
(nominal 5/8" O.D.) or vinyl tubing with a minimum inner
diameter (I.D.) of 5/8" may also be used, as allowed by local
codes. Alternate drain pipes and hoses may be used as allowed by
local codes.
The drain line must maintain a 1/4" (6.4 mm) per foot downward
slope toward the drain. 1/4" (6.4 mm) per foot is recommended.
Installation of an overflow line is recommended when the 1/4"
(6.4 mm) per foot slope to the condensate drain cannot be
maintained. A drain tube clip is included in the furnace to prevent
kinking/buckling of the drain tube. The clip should remain in the
furnace (between the door switch plate and the blower shelf, Fig.
9) during operation. See Fig. 17 for proper routing and
installation of the overflow.
DO NOT trap the drain line in any other location than at the
condensate drain trap supplied with the furnace.
FROZEN AND BURST WATER PIPE HAZARD
Failure to follow this caution may result in property damage.
If a condensate pump is installed, a plugged condensate drain
or a failed pump may cause the furnace to shut down. Do
not leave the home unattended during freezing weather
without turning off water supply and draining water pipes or
otherwise protecting against the risk of frozen pipes.
If possible, DO NOT route the drain line where it may freeze.
The drain line must terminate at an inside drain to prevent
freezing of the condensate and possible property damage.
1. A condensate sump pump MUST be used if required by
local codes, or if no indoor floor drain is available. The
condensate pump must be approved for use with acidic
condensate.
2. A plugged condensate drain line or a failed condensate
pump will allow condensate to spill. If the furnace is in-
stalled where a condensate spill could cause damage, it is
recommended that an auxiliary safety switch be installed
to prevent operation of the equipment in the event of pump
failure or plugged drain line. If used, an auxiliary safety
switch should be installed in the R circuit (low voltage)
ONLY.
3. If the auxiliary switch in the condensate pump is used, the
furnace may shut down due to a blocked condensate line
or failed pump. To prevent frozen water pipes see the
"Frozen Water Pipe Hazard" Installation Section of this
manual.
Drain Tube
Blower
Shelf Door
Switch
Representativedrawing only, some models mayvary in appearance.
A07705
Fig. 9 - Drain Tube Clip Location
CondensateDrainTrap Freeze Protection
Special precautions MUST be made if installing furnace in an
area which may drop below freezing. This can cause improper
operation or damage to the equipment. If the the furnace
environment has the potential of freezing, the drain trap and drain
line must be protected. Use 3 to 6 watt per foot at 115 volt, 40 ° F
(4.4 ° C) self-regulating shielded and waterproof heat tape. Wrap
the drain trap and drain line with the heat tape and secure with the
ties. Follow the heat tape manufacturer's recommendations.
18

Plastic Caps (2)
Yellowor black
VentDrain
&Clamps
Dual Pressure Switch Detail
Coupling&Clamps
(Optional)
DrainTee-.
DrainTube
Black Rubber ....
1/2" ID &Clamps
DrainTube
Corrugated5/8"ID.
& Clamps
DrainConnectorBlackPVC
3/4" PVCX 1/2" CPVC
(Loose parts bag)
\
/
CasingGrommet /
Black Rubber__/
5/8"ID i
(Loosepartsbag)
\
I-
g
=<
,x,
_ _--On SomeModels
r- .........
m - ...... ONLY
ReliefTube
BlackRubber
i i 3/16"IO
i i
Single Pressure
i i Switc h
iStreetElbow
_i........1/2"cPvc
...... (Loosepartsbag)
\\ ) © o
\\\ , ,
DrainLineVentTee3/4" PVCor ",
1/2" CPVC(Fieldsupplied) DrainTubeBlackRubber5/8"ID &Clamps,
Cut length to fit (Loose parts bag)
Representative drawing only, some models may vary in appearance.
Fig. 10 -Upflow Installations Top Vent
25-24-80
A07706
Upflow Installations Top Vent (See Fig.
10)
•Remove knockout from the side of the furnace casing where
drain tube will exit.
• Install casing grommet (black rubber 5/8" ID grommet - in
loose parts bag)
• Install the 1/2" CPVC street elbow on discharge of trap
• Install the black PVC tube connector (3/4" PVC x 1/2" CPVC
from loose parts bag) as shown in the illustration above.
• Cut the black drain tube (5/8" ID - in loose parts bag) to length
to fit between trap and tube connector through grommet.
• Clamp both ends of the drain tube using clamps provided.
•Glue the CPVC street elbow to the trap using appropriate
cleaner and solvent cement.
• The field supplied 3/4" PVC or 1/2" CPVC drain line vent tee
must vent outside the furnace cabinet (see exploded view
above).
NOTE: It is recommended that all PVC piping and fitting
connections be fit up and inspected before final cementing. Trap
must be primed before operation. Verify all condensate drain
connections are securely clamped. A coupling and clamps (in
loose part bag) may be installed as shown for future servicing of
the vent system.
NOTE: "PVC" is used as a generic term. Pipe and fitting
materials used must be acceptable to the local code officials
having jurisdiction.
19

Plastic Cap
Yellow or black
Coupling& Clamps
(Optional)..... .
t
VentDrain Either:The PVC
&Clamps DrainTeeora field
supplied2"PVCTee ,,x,
DrainConnectorBlackPVC
3/4" PVCX 1/2" CPVC
(Loosepartsbag),
J \
CasingGrommet /\\
BlackRubber \
518"ID _ _ /
(Loosepartsbag)
DrainTube
Corrugated
518"ID &Clamps
2"PVCCoupling
i
/
f-- \_J
...................On SomeModels
ONLY
i{......
\
--- ....... _--- \
DrainLineVentTee3/4"PVCor1/2"CPVC(Fieldsupplied)
Representative drawing only, some models may vary in appearance.
/
i i
)i i
Switch
Fig. 11 -Upflow Installations Vent through Left Side
ii
;: i be angled5°to 10° also.
25-24-81
A07707
Upflow Installations Vent through Left
Side (See Fig. 11)
•Remove drain tee from inducer discharge and remove black
drain tube (1/2" 1D) from bottom of drain tee.
•Install Vent Pipe grommet in side of casing.
• Cut an appropriate length of 2" PVC pipe long enough to exit
the cabinet and connect the vent drain to either:
-- A standard field supplied 2" PVC tee, or
-- A 2" PVC coupling fastened onto the drain tee.
• Install tee trap into bottom of tee.
• Remove knockout from the side of the furnace casing where
drain tube will exit.
• Install the 1/2" CPVC street elbow on discharge of trap
• Install the black PVC drain connector (3/4" PVC x 1/2" CPVC
from loose parts bag) as shown in the illustration above.
• Cut the black drain tube (5/8" ID - in loose parts bag) to length
to fit between trap and tube connector through grommet.
• Clamp both ends of the drain tube using clamps provided.
•Glue the CPVC street elbow to the trap using appropriate
cleaner and solvent cement.
• Connect the tee trap and the main drain line exiting the casing
as shown in Fig. 17.
NOTE: It is recommended that all PVC piping and fitting
connections be fit up and inspected before final cementing. Both
the internal trap and the external tee trap must be primed
before operation. Verify all condensate drain connections are
securely clamped. A coupling and clamps (in loose part bag) may
be installed as shown for future servicing of the vent system.
2O

Plastic Cap _'_
Yellow or black
VentDrain
&Clamps
Dual
Pressure Switch
DrainTube
Corrugated
5/8"ID& Clamps.
SIDE VIEW
5° to10°
/
/
be angled 5° to 10° also.
A07708
Fig. 12 -All Models Vent Through Right Side
All Models Vent through Right Side (See
Fig. 12)
•Disconnect the black drain tube between the drain vent and the
trap.
• Rotate the inducer 180 ° for a right side vent after loosening the
4 inducer attachment screws. Reinstall and retighten the
inducer screws to 20" pounds torque.
• Using the _/2" OD barbed coupling in the loose parts bag
connect together with the 2 short 1/2" ID elbow tubes and
connect the lower discharge port of the vent drain to the trap.
Secure all connections with clamps.
• Install the vent pipe grommet into the casing
• Cut an appropriate length of 2" PVC pipe long enough to exit
the cabinet and connect the vent drain to either:
-- A standard field supplied 2" PVC tee, or
-- A 2" PVC coupling fastened onto the drain tee.
• Install tee trap into bottom section of tee.
• Remove knockout from the side of the furnace casing where
drain tube will exit.
•Install casing grommet (black rubber 5/8" ID grommet - in
loose parts bag)
• Install the _/2" CPVC street elbow on discharge of trap
• Install the black PVC tube connector (3/4" PVC x _/2" CPVC
from loose parts bag) as shown in the illustration above
• Cut the black drain tube (5/s" ID - in loose parts bag) to length
to fit between trap and tube connector through grommet.
• Clamp both ends of the drain tube using clamps provided.
• Glue the CPVC street elbow to the trap using appropriate
cleaner and solvent cement.
• Connect the tee trap and the main drain line exiting the casing
as shown in Fig. 17.
• Note: It is recommended that all PVC piping and fitting
connections be fit up and inspected before final cementing.
Both the internal trap and the external tee trap must be primed
before operation. Verify all condensate drain connections are
securely clamped. A coupling and clamps (in loose part bag)
may be installed as shown for future servicing of the vent
system.
21

Vent Drain
&Clamps Plastic Caps
Alternate Orientation
Single Pressure Switch Detail
TrapConnection
Preassemble&
insertinto furnace
I
j
Dual Pressure Switch
ReliefTube
BlackRubber
3/ ,,
....... 16 ID
\
Field
SuppliedTee
i
jFlexibleTubingConnector
3/16"OD (LoosePartsBag)
/
ReliefTube Extension
i ..J BlackRubber3/16" ID
,_ ....... Cut to Fit (LoosePartsBag)
TeeTrapWhitePVC
(loosepartsbag)
'\
\,
Coupling& Clamps /
(Optional) /
CapandClamp
OpenEnd
//
/
RemoveKO before
mountingTrap
/
DrainTube
Black Rubber
1/2" ID &Clamps
DrainTubeCorrugated5/8"ID &Clamps
Cut at straightsection
\ i
'\\
_'_ _ Cut Here
...... Leaveroomfor clamp
Representative drawing only, some models may vary in appearance.
Fig. 13 -Horizontal Left through Top
A07709
Horizontal Left through Top (See Fig. 13)
•Disconnect the hoses from the trap assembly, and remove trap
and trap mounting bracket from the blower compartment.
Using cover plate and gasket provided in the loose parts bag,
cover the hole from the burner compartment to the blower
compartment and secure with screws.
• Remove knockout from the side of the furnace casing where
drain tube will exit.
• Mount the trap externally to the bottom side of the unit using
the 2 screws provided in the location shown.
• Cut the corrugated tube as shown in the illustration above.
Connect the corrugated hose from the transition to the trap.
Secure connections with clamps.
• Remove the black 1/2" ID drain tube from the drain tee. Install
a yellow cap and clamp over the open drain port of the drain
tee.
• Connect the black 1/2" ID drain tube from the Vent Drain to the
trap. Secure connections with clamps.
• Connect the 3/16" ID relief tube to the middle port on the trap.
If an extension is required, use the 3/16" OD flexible tubing
connector and the black 3/16" ID relief tube in the loose parts
bag. Cut tube to length. Secure all connections with clamps.
• Cut an appropriate length of 2" PVC pipe, long enough to exit
the cabinet and connect the vent drain to either:
-- A standard field supplied 2" PVC tee, or
-- A 2" PVC coupling fastened onto the drain tee.
• Install tee trap into bottom section of tee.
• Connect the tee trap and the main drain line exiting the casing
as shown in Fig. 17.
NOTE: It is recommended that all PVC piping and fitting
connections be fit up and inspected before final cementing. Both
the external trap and the external tee trap must be primed
before operation. Verify all condensate drain connections are
securely clamped. A coupling and clamps (in loose part bag) may
be installed as shown for future servicing of the vent system.
22

Alternate Orientation
Field
Single Pressure Switch Detail
Yellowor black
Plasticcap
i
/
/
Vent Drain
/
/
/
TeeTrapWhite PVC/_/
(loosepartsbag) _ :'
On e sm;.
\
ElbowTube BlackRubber
&Clamps
(LoosePartsBag)
BarbedCoupling
1/2" OD (LooseParts Bag)
DrainTubeBlackRubber
1/2" ID& Clamps
FlexibleTubingt_onnector
3/16" OD (LoosePartsBag)
/
/
ReliefTubeExtension
BlackRubber3/16" ID Cutto Fit
(LoosePartsBag)
WARNING
zMove Capsto top of trap
DrainTubeBlack,5/a"IDCorrugated
Cut at stralghtsection
\
Leaveroomfor clamp "Cut Here
Representativedrawingonly,somemodelsmayvary inappearance.
Fig. 14 -Horizontal Left-Side Vent
25-24-88
A07710
Horizontal Left-Side Vent (See Fig. 14)
• Remove the drain tee from the Vent Drain if installed.
• Rotate the inducer 180 ° for a side vent after loosening the 4
inducer attachment screws. Reinstall and retighten the inducer
screws to 20" pounds torque.
• Disconnect the hoses from the trap assembly, and remove trap
and trap mounting bracket from the blower compartment.
Using cover plate and gasket provided in the loose parts bag,
cover the hole from the burner compartment to the blower
compartment and secure with screws.
• Remove knockout from the side of the furnace casing where
drain tube will exit.
• Mount the trap externally to the bottom side of the unit using
the 2 screws provided in the location shown.
• Cut the corrugated tube as shown in the illustration above.
Connect the corrugated hose from the transition to the trap.
Secure connections with clamps.
• Connect the black 1/2" ID drain tube from the Vent Drain to the
trap. If an extension is required, use the black 1/2" OD flexible
tubing connector and the black 1/2" ID drain tube in the loose
parts bag. Cut tube to length. Secure connections with clamps.
• Connect the 3/16" ID relief tube to the middle port on the trap.
If an extension is required, use the 3/16"OD flexible tubing
connector and the black 3/16" ID relief tube in the loose parts
bag. Cut tube to length.
• Cut an appropriate length of 2" PVC pipe, fittings and
extension pipe long enough to exit the cabinet and connect the
vent drain to either:
-- A standard field supplied 2" PVC tee, or
-- A 2" PVC coupling fastened onto the drain tee.
• Install tee trap into bottom section of tee.
• Important: The pipe to the tee trap must be level or sloping
towards the tee trap
• Connect the tee trap and the main drain line exiting the casing
as shown in Fig. 17.
NOTE: It is recommended that all PVC piping and fitting
connections be fit up and inspected before final cementing. Both
the external trap and the external tee trap must be primed before
operation. Verify all condensate drain connections are securely
clamped. A coupling and clamps (in loose part bag) may be
installed as shown for future servicing of the vent system.
23

[i
TrapConnection
"Clampears"
PointedOUT
Preassemble
insertintofurnace
Single Pressure Switch Detail
i
ReliefTubeRubberTube \ i
3/16"ID _
FlexibleTubingConnector
3/16"OD (LoosePartsBag) i
i
ReliefTube Extension
BlackRubber3/16" ID i_
Cut to Fit (LoosePartsBag)
Coupling& Clamps
(Optional),
\\\\\\
WARNING \,
Add Capand \,
Clamp "
Dual Pressure Switch
DrainTubeCorrugated5/8"ID&Clamps/
Plastic Cap
Yellow or black
/
/
Alternate Orienta-
I--i
_i Field
VentDrain <:Cj SuppliedTee
&Clamps ,,I,- i /
Xiii_TeeTrap
'J White PVC
\ i
ElbowTubeBlackRubber 1/2"
ID& Clamps(LoosePartsBag)
On SomeModels
ONLY
BarbedCoupling1/2"OD
_-.. (LoosePartsBag)
\
DrainTubeBlackRubber
1/2"ID &Clamps
Leaveroomfor clamp "Cut Here
Representativedrawingonly,somemodelsmayvaryinappearance.
Fig. 15 -Horizontal Right through Top
A07711
Horizontal Right through Top (See Fig.
15)
•Disconnect the hoses from the trap assembly, and remove trap
and trap mounting bracket from the blower compartment.
Using cover plate and gasket provided in the loose parts bag,
cover the hole from the burner compartment to the blower
compartment and secure with screws.
•Remove knockout from the side of the furnace casing where
drain tube will exit.
• Mount the trap externally to the bottom side of the unit using
the 2 screws provided in the location shown.
• Cut the corrugated tube as shown in the illustration above.
Connect the corrugated hose from the transition to the trap.
Secure connections with clamps.
• Connect the black 1/2" ID drain tube from the Vent Drain to
the trap. If an extension is required, use the black 1/2" OD
barbed coupling and the black 1/2" ID drain tube in the loose
parts bag. Cut tube to length. Secure connections with clamps.
• Connect the 3/16" ID relief tube to the middle port on the trap.
If an extension is required, use the clear 3/16" OD flexible
tubing connector and the black 3/16" ID relief tube in the loose
parts bag. Cut tube to length.
• Cut an appropriate length of 2" PVC pipe, fittings and
extension pipe long enough to exit the cabinet and connect the
vent drain to a standard field supplied 2" PVC tee
• Install tee trap into bottom section of tee.
• Connect the tee trap and the main drain line exiting the casing
as shown in Fig. 17.
NOTE: It is recommended that all PVC piping and fitting
connections be fit up and inspected before final cementing. Both
the external trap and the external tee trap must be primed before
operation. Verify all condensate drain connections are securely
clamped. A coupling and clamps (in loose part bag) may be
installed as shown for future servicing of the vent system.
24

Plastic Cap
Yellowor black
_'i -- _'
'i,_ ...... ;ingle Press:ureSwitch Detail
i
Vent Drain
& Clamps
Level or Sloped
towards Tee
ReliefTube BlackRubbt
3/16"ID _ _
FlexibleTubingConnector ..........
3/16" OD (LoosePartsBag)
ReliefTubeExtension.... -J---
BlackRubber3/16" ID
Cutto Fit(LoosePartsBag)
Dual Pressure Switch
DrainTubeCorrugated,5/8"ID& Clamps
Cut at straightsection
i/
Leaveroomfor clamp Cut Here
DrainTube
BlackRubber
1/2"ID& Clamps
_J
Representativedrawingonly,somemodelsmayvary inappearance.
Fig. 16 -Horizontal Right Side Vent
_Coupling& Clamps
ptional)
<:: Field
/Supplied Tee
/
/TeeTrap
:::::::::::__ WhitePVC
_-(loosepartsbag)
-Elbow Tube
BlackRubber
1/2"ID &Clamps
(LoosePartsBag)
On SomeModels
/ONLY
INLET _
Alternate Orientation
\'BarbedCoupling1/2" OD
(LoosePartsBag)
A07712
Horizontal Right Side Vent (See Fig. 16)
•Disconnect drain tee if installed
• Disconnect the hoses from the trap assembly, and remove trap
and trap mounting bracket from the blower compartment.
Using cover plate and gasket provided in the loose parts bag,
cover the hole from the burner compartment to the blower
compartment and secure with screws.
• Remove knockout from the side of the furnace casing where
drain tube will exit.
• Mount the trap externally to the bottom side of the unit using
the 2 screws provided in the location shown.
• Cut the corrugated tube as shown in the illustration above.
Connect the corrugated hose from the transition to the trap.
Secure connections with clamps.
• Connect the black 1/2" ID drain tube from the Vent Drain to the
trap. If an extension is required, use the 1/2" OD barbed
coupling and the black 1/2" ID drain tube in the loose parts bag.
Cut tube to length. Secure connections with clamps.
• Connect the 3/16" ID relief tube to the middle port on the trap.
If an extension is required, use the clear 3/16"OD splice
connector and the black 3/16" ID relief tube in the loose parts
bag. Cut tube to length.
• Cut an appropriate length of 2" PVC pipe, fittings and
extension pipe long enough to exit the cabinet and connect the
vent drain to either:
-- A standard field supplied 2" PVC tee, or
-- A 2" PVC coupling fastened onto the drain tee.
• Install tee trap into bottom section of tee.
• Important: The pipe to the tee trap must be level or sloping
towards the tee trap.
• Connect the tee trap and the main drain line exiting the casing
as shown in Fig. 17.
NOTE: It is recommended that all PVC piping and fitting
connections be fit up and inspected before final cementing. Both
the external trap and the external tee trap must be primed
25

beforeoperation.Verifyallcondensatedrainconnectionsare
securelyclamped.Acouplingandclamps(inloosepartbag)may
beinstalledasshownforfutureservicingof the vent system.
4/,,
x
t
ra
ConnectingVent and Combustion Air Piping
CARBON MONOXIDE POISONING HAZARD
Failure to follow this warning could result in personal injury or
death.
Cement or mechanically seal all joints, fittings, etc. to prevent
leakage of flue gasses.
[
Tee Trap
Evaporator
Coil
Drain Line
(Optional)
/) " J
//
/
/
Condensate
Trap
Representativedrawingonly,somemodelsmayvaryin appearance,
A07713
Fig. 17 -Connecting Tee Trap to Condensate Trap and Main
Drain Line
The tee trap must be connected to the main condensate drain line
as conceptually shown above. Different installations may require
slightly different orientations. The following steps apply to all
installations.
1. The tee trap should be installed as close to the side or top
of the furnace as practical. Minimize the distance between
the inducer and the tee trap as much as possible.
2. An open tee is to be used at the tee trap discharge. The top
end of the tee should be open to the atmosphere to elimin-
ate potential air lock problems.
3. The drain line from the tee trap is to be connected to the
furnace condensate trap drain line as shown above.
4. Condensate drain lines from a cooling coil may be connec-
ted downstream of the connection point of the tee trap and
furnace condensate trap.
IMPORTANT: Prime both traps with water before operation.
Failure to prime the traps may result in discharge of flue gases
from the condensate drain line and open tee for aperiod of time,
and may result in temporary lockout of the furnace upon start up.
Main drain line construction is left to the discretion of the
installer. It may be made of either rigid pipe or flexible tube.
Tube ID should NOT be less than 1/2,,.
Refer to Fig. 10 through Fig. 16 that corresponds to the
installation position of the furnace for the application.
Preassemble the vent and combustion air piping from the furnace
to the vent termination. Do not cement the pipe joints until the
pipe preassembly process is complete.
Combustion Air Pipe Connection (Dual Certified or
Direct Vent)
Install the air intake coupling and gasket to the furnace with the
four(4) screws:
NOTE: The air intake coupling and gasket can be installed to the
top panel, or to the alternate air intake locations on either the left
or right side panels of the furnace.
For installation in the alternate air intake location on either the
left or right side panels, remove the 3" knockout from the side
panel and relocate to the air intake hole in the top panel. Use four
(4) screws to seal the four (4) mounting holes in the top panel
next to the hole plug. Drill four (4) 7/64" diameter holes in the
casing using the air intake coupling as the template.
The air intake coupling is sized for 2" PVC pipe.
Install the combustion air pipe to the air intake coupling using
RTV sealant to provide for future serviceability.
Vent Pipe Connection
Install the vent pipe grommet to the furnace panel. Locate the
grommet in the furnace panel at a location directly away from the
vent fitting on the combustion blower. The grommet snaps into
the 3" hole on the furnace panel. NOTE: Depending on the
installation position, the vent pipe grommet will be installed to
the top panel or to the alternate location on the side panels. If
needed, remove the 3" hole plug from the loose parts bag and
relocate to the open hole in the furnace panel. (See Fig. 10 or Fig.
17)
Install the vent pipe to the rubber coupling, the vent fitting or the
PVC vent extension pipe. Securely attach using the clamp or
PVC cement as required.
NOTE: The vent fitting MUST be installed with the air flow
marking arrow pointed toward the vent pipe. (See Fig. 18
Some installations require the vent fitting to be installed with
a 5 ° to 10 ° downward slope. (See Fig. 10 through Fig. 17)
26

RubberCoupling J ._ VentPipe
&Clamps - _ (Top PanelExit)
.. _,_,-_ NOTE: The 90 ° elbow is approved
v_P_pe ....."_ for use inside the furnace ONLY.
_l_Vent Fitting
& Clamps
Combustion
Blower
/
Tee
Exit) _b/-_L_ IPipe(SidePanel _'y_
Vent i
SIDE VIEW (
_ i-'qr R-otatedownward '/\
:>, 5° to 10°
.!iv )
NOTE:Built-inchannelwillbeangled5° to 10° als0.
A07714
Fig. 18 - Proper Sealing Procedure for Combustion Blower
Joining Pipe and Fittings
SEE VENT AND COMBUSTION AIR PIPING, vent and
Combustion Air Piping Guidelines in this manual for applicable
ASTM Standards for vent materials.
primer to inside surface of socket and outside of pipe. Do
NOT allow primer to dry before applying cement.
3. Apply a thin coat of cement evenly in the socket. Quickly
apply a heavy coat of cement to the pipe end and insert
pipe into fittings with a slight twisting movement until it
bottoms out.
NOTE: Cement MUST be fluid while inserting pipe. If NOT,
recoat pipe.
4. Hold the pipe in the fitting for 30 seconds to prevent the
tapered socket from pushing the pipe out of the fitting.
5. Wipe all excess cement from the joint with a rag. Allow 15
minutes before handling. Cure time varies according to fit,
temperature and humidity.
ConnectingVent Pipesand Termination
(Direct Vent)
NOTE: For direct vent applications, combustion air intake and
vent MUST terminate in the same atmospheric pressure zone. If
installation is in a cold climate (sustained temperatures 0°F
(-17.8°C)and below for 24 or more consecutive hours), increase
the minimum distance between vent pipe and air intake from 8"
to 18" (203.2 to 457.2 mm).
6. Install all couplings, nipples and elbows using proper pro-
cedures for Joining Pipe and Fittings and maintain spa-
cing between vent and combustion air piping as indicated
in Fig. 19 through Fig. 27.
MIN. "18"Minimumfor coldclimates
(sustainedtemperatures0° F
andbelowfor 24ormorecon-
secutivehours)
FIRE HAZARD
Failure to follow this warning could result in personal injury,
death, and/or property damage.
Obselve all cautions and warnings printed on material
containers.
Provide adequate ventilation and do NOT assemble near heat
source or open flame. Do NOT smoke while using solvent
cements and avoid contact with skin or eyes.
_:::_INLET
iiiiiiiiif M_N.
FF GRADE LEVEL
OR
SNOW LEVEL
25-00-05F
A07715
Fig. 19 - Sidewall Termination 12" (304.8 mm) or More
Above Snow Level or Grade Level
CARBON MONOXIDE POISONING HAZARD
Failure to follow this warning could result in personal injury or
death.
Do NOT use solvent cement that has become curdled, lumpy
or thickened and do NOT thin. Observe precautions printed
on containers. For applications below 32°F (0°C), use only
low temperature type solvent cement. Poor joints may lead to
disconnected or leaking vent pipe joints allowing carbon
monoxide to enter the living space.
1. Cut pipe end square, remove ragged edges and burrs.
Chamfer end of pipe, then clean fitting, socket and pipe
joint of all dirt, grease, or moisture.
NOTE: Stir the solvent cement frequently while using. Use a
natural bristle brush or the dauber supplied with the cement. The
proper brush size is one inch.
2. After checking pipe and socket for proper fit, wipe socket
and pipe with cleaner-primer. Apply a liberal coat of
HorizontalTermination
1. Cut two holes. 21/2" for 2" pipe, 3" for 21/2" pipe, or 31/2"
for 3" pipe. Do NOT make the holes oversized, or it will
be necessary to add a sheet metal or plywood plate on the
outside with the correct size hole in it.
2. Check hole sizes by making sure it is smaller than the
couplings or elbows that will be installed on the outside.
The couplings or elbows MUST prevent the pipe from be-
ing pushed back through the wall.
3. Extend vent pipe and combustion air pipe through the wall
3/4" to 1" and seal area between pipe and wall.
4. Install the couplings, nipple and termination elbows as
shown and maintain spacing between vent and combustion
air piping as indicated in Fig. 19 and Fig. 20.
A metal shield is recommended 18" x 18" min. or 18" (457.2
mm) min. diameter around the vent termination at the exterior
wall to protect the house exterior materials from flue product or
condensation (freezing) damage.
27

'18" Minimum for cold climates
(sustained temperatures 0° F and be-
low for 24 or more consecutive hours}
A07716
Fig. 20 -Sidewall Termination with Exterior Risers to Get
Above Snow Level or Grade Level
VerticalTermination
1. Fig. 21 shows the proper installation and clearances for
vertical vent termination. The vertical roof termination
should be sealed with a plumbing roof boot or equivalent
flashing. The inlet of the intake pipe and end of the ex-
haust vent must be terminated no less than 12" (304.8 mm)
above the roof or snow accumulation level, and 12" (304.8
mm) away from a vertical wall or other protrusion.
2. If the vent system is installed in an existing chimney make
sure clearances shown in Fig. 21 are maintained. Horizont-
al section before the termination elbow can be extended on
the inlet air to provide necessary clearance.
MultiVent TerminationClearances
When two (2) or more furnaces are vented near each other, each
furnace must be individually vented.
Two (2) vent terminations may be installed as shown in Fig. 22,
23, 24, 25, 26 and 27, but the next vent termination must be at
least 36" away from first 2 terminations. It is important that vent
terminations be made as shown to avoid recirculation of flue
gases.
Using ExteriorRisers
1. Install elbows and pipe to form riser as shown in Fig. 20.
2. Secure vent pipe to wall with galvanized strap or other rust
resistant material to restrain pipe from moving.
3. Insulate pipe with Armaflex or equivalent moisture resist-
ant closed cell foam insulation or fiberglass insulation if
boxed in and sealed against moisture.
VentTerminationShielding
Under certain wind conditions some building materials may be
affected by flue products expelled in close proximity to
unprotected surfaces. Sealing or shielding of the exposed surfaces
with a corrosion resistant material (such as aluminum sheeting)
may be required to prevent staining or deterioration. The
protective material should be attached and sealed (if necessary) to
the building before attaching the vent terminal.
A= 12" Above roof or snow accumulation level
B= 8" Min., 20' Maximum, except in areas with extreme cold temperatures (sustained
temperatures 0°F and below for 24 or more consecutive hours), then 18" Min.
A07717
Fig. 21 -Rooftop Termination
12" Min. Grade )
or Snow Level ' .............
Combustion
Air
A07718
Fig. 22 -Concentric Vent and Combustion-Air
Roof Termination
"A"
.............. Exhaust
Vent 25-22-02d
Dimension "A" is touching or 2" maximum separation.
A07695
Fig. 23 -Concentric Vent and Combustion Air
Sidewall Termination
28

.--J" j ....
20'Max._................ "................
.... .-o
! 18" Min.for
_ColdClimates
(Sustainedtemperatures0° F
.J andbelowfor 24 or morecon-
12" Min.Gradeor J
SnowLevel J -j" secutivehours)
..... "Dimension "A" is touching or 2" maximum separation.
A07696
Fig. 24 - Sidewall Inlet Vent and Exhaust-Air Termination
18"Min. for Cold Climates
(SustainedtemperaturesO° F
andbelowfor 24or morecon-
secutivehours) 8" Min.
12" Min.
Gradeor
Snow Level
/
/'A" j/
"A"
Dimension "A" is touching or 2" maximum separation.
A07697
Fig. 25 - Sidewall Inlet Vent and Exhaust-Air Termination
with Exterior Risers
18" Min. for Cold Climates
J(Sustained temperatures
0° F and below for 24 or
more consecutive hours)
'\ \ '_
12" Min.
Level
Inlet
A07698
Fig. 26 - Rooftop Inlet Vent and Exhaust-Air Termination
X: ............. zz:::: : ..........
OVERHANG
EXHAUST 12" MIN.
.......... _ ......... _ --l_,, MiN: Gt0und Level
..................... ......... _--.. _ OR Snow Level
FRONT VIEW
SameJoist
Space
SIDE VIEW
Fig. 27 -Recommended Alternate Installation
for Sustained Cold Weather
(0°F &below for 24 or more consecutive hours)
A07699
29

CONCENTRICTERMINATION
VentTerminationClearances
CARBON MONOXIDE POISONING, FIRE AND
EXPLOSION HAZARD
Failure to follow this warning could result in personal injury,
death, or property damage.
Inlet and outlet pipes may NOT be vented directly above each
other (standard vent terminals).
1. Determine termination locations based on clearances spe-
cified in following steps and as shown in Fig• 7, Fig• 28
through Fig• 33.
2. The vent termination must be located at least 12" (304.8
mm) above ground or normally expected snow accumula-
tion levels.
3. Do NOT terminate over public walkways. Avoid areas
where condensate may cause problems such as above
planters, patios, or adjacent to windows where steam may
cause fogging.
4. The vent termination shall be located at least 4' (1.2 M)ho-
rizontally from any electric meter, gas meter, gas regulator,
and any relief equipment. These distances apply ONLY to
U.S. installations.
5. The vent termination is to be located at least 3' (•91 M)
above any forced air inlet located within 10' (3.1 M); (3.1
M) and at least 10' (3.1 M) from a combustion air intake of
another appliance, except another direct vent furnace in-
take.
6. In Canada, the Canadian Fuel Gas Code takes precedence
over the preceding termination instructions.
ConcentricVentTermination- Kit#
KGAVT0601CVT& KGAVT051CVT
These kits are for vertical or horizontal termination of the
combustion air inlet and the exhaust vent pipes on Category IV
gas-fired condensing furnaces. The KGAVT0601CVT kit can be
used for 3" diameter pipe systems. The KGAVT0501CVT kit can
be used for 2" diameter pipe system. Refer to Table 4 for the
correct pipe size for the furnace. Both the combustion air inlet
and the exhaust vent pipes must attach to the termination kit. The
termination kit must terminate outside the structure and must be
installed per the instructions outlined below for vertical or
horizontal termination. Vertical termination is preferred. Field
supplied pipe and fittings are required to complete the
installation.
Vertical& HorizontalTermination
1.
2.
Determine the pipe diameters required for the installation
from Table 4 and Fig. 30.
Determine the best location for the termination kit. See
Fig. 29 for vertical termination or Fig. 33 for horizontal
termination. Roof termination is preferred since it is less
susceptible to damage, has reduced intake contaminants
and less visible vent vapor. For side wall termination, con-
sideration should be given to: 1) possible damage from the
vapors to plants/shrubs, other equipment and building ma-
terials, 2) possible damage to the terminal from foreign ob-
jects, 3) wind effects that may cause recirculation of flue
products, debris or light snow and 4) visible vent vapor.
3. Cut one 5" diameter hole through the structure for the
KGAVT0601CVT Kit or one 4" diameter hole for the
KGAVT0501CVT Kit.
Kit Contents:
3" Rain Cap or 2" Rain Cap
3" Diameter SDR-26 Pipe, 191/2" Long or
4" Diameter SDR-26 Pipe, 24" Long,
2" Diameter SDR-26 Pipe, 315/8 " Long or
21/2'' Diameter SDR-26 Pipe, 371/8 '' Long,
3" Y Concentric Fitting or 2" Y Concentric Fitting
Nominal3"or4" Dia.
,_ SDR-26Pipe
•2or 2112" Dia.
Y ConcentricFitting SDR-26Pipe
Fig. 28 - Kit Components
2"or3"Dia.
RainCap
A07719
Vent _
Combustion
Air ,,
Roof Boot/
Flashing
(Field Supplied)'
i Maintain 12" min. clearance above
///_ ofhighest24"aboveanticipatedroof,snow level• Max.
i
45° Elbow
,Ak/(Field Supplied)
Vent, i_Combustion
,_J Air
Note:
Support must be field installed to secure termination kit to structure•
Fig. 29 - Concentric Vent Roof Installation
A07720
4. Dimension D may be lengthened to 60" (1524 mm) max•
or shortened by cutting the pipes to 12" (304.8 mm) min•
Dimension A will change according to D dimension. (See
Fig. 30).
5. Partially assemble the concentric vent termination kit.
Clean and cement the parts using the procedures for Join-
ing Pipe and Fittings section of the manual. A) Cement the
Y Concentric fitting to the longest of the two straight kit
pipes. (See Fig. 28) B) Cement the rain cap to the shortest
of the straight kit parts. (See Fig. 28).
NOTE: A field supplied stainless steel screw may be used to
secure the rain cap to the pipe instead of cementing when field
disassembly is desired for cleaning (See Fig. 31).
3O

11/2"
., i- V0,ntake,@s
Model A* B C D**
KGAVTO601CVT 387/8 3 41/2 211/8
KGAVTO5Ol CVT 333/8 2 31/2 165/8
* = Dimension will change accordingly as dimension D is lengthened
or shortened.
**= Dimension D may be lengthened to 60" may also be shortened by
cutting the pipes provided in the kit to 12" minimum.
A07721
Fig. 30 - Concentric Vent Dimensional Drawing
Concentric Termination Kit KGAVT0801CVT &
KGAVT0701CVT Venting Table for
PG9YAA Models
60,000 Btuh Furnaces
KGAVT0701CVT -35' & (4) 90 ° elbows with 2" PVC pipe or
KGAVT0801OVT - 65' & (4) 90 ° elbows with 3" PVC pipe
80,000 Btuh Furnace
KGAVT0701QVT - 35' & (4) 90 ° elbows with 2" PVC pipe or
KGAVT0801OVT - 35' & (4) 90 ° elbows with 3" PVC pipe
100,000 Btuh Furnace
KGAVT0701CVT -25' & (3) 90 ° elbows with 2" PVC pipe or
KGAVT0801OVT - 35' & (4) 90 ° elbows with 3" PVC pipe
1. Do not include the field supplied 45 ° elbow in the total el-
bow count,
2. If more elbows are required, reduce the length of both the
inlet and the exhaust pipes five feet for each additional elbow
used,
3, Elbows are DWV long radius type for 2" and 3" vents,
NOTE: Feet of pipe is whichever pipe run is the longest,
either inlet or outlet side,
Table 4-Concentric Termination Kit
If assembly needs to be extended to meet height or side wall
thickness requirement, the two pipes supplied in the kit may be
replaced by using the same diameter solid, single (no coupling
connections) field supplied SDR-26 PVC (ASTM D2241) pipes.
Do not extend dimension D more than 60". (See Fig. 30).
Do not use field supplied couplings to extend the pipes.
Airflow restriction will occur and the furnace pressure switch
may cause intermittent operation.
CARBON MONOXIDE POISONING HAZARD
Failure to follow this warning could result in personal injury or
death.
When using the alternate screw assembly method, drill a
clearance hole in the rain cap and a pilot hole in the vent pipe
for the screw size being used. Failure to drill adequate holes
may cause cracking of the PVC components, allowing flue
gasses to be recirculated.
Drill clearance hole in rain
cap and pilot hole in vent pipe.
_oel screw
(Field supplied)
Fig. 31 - Rain Cap to Vent Pipe Assembly
A07722
6. Install the Y concentric fitting and the pipe assembly
through the structure's hole. For vertical termination, in-
stall the parts through the field supplied roof boot/flashing.
NOTE: Do not allow insulation or other materials to accumulate
inside the pipe assembly when installing through the structure's
hole.
CARBON MONOXIDE POISONING HAZARD
Failure to follow this warning could result in personal injury or
death.
Do not operate the furnace with the rain cap removed as
recirculating of the flue gasses may occur. Water may also
collect inside the larger combustion air pipe and flow to the
burner enclosure.
7. Secure the assembly to the structure as shown in Fig. 29 or
Fig. 33 using field supplied metal strapping or equivalent
material.
NOTE: Ensure the termination height is above the roof surface
or anticipated snow level as shown in Fig. 29 for vertical
termination. Ensure the termination location clearance
dimensions are as shown in Fig. 32 and Fig. 33 for horizontal
termination.
8. Install the rain cap and the small diameter pipe assembly
in the Y concentric fitting and the large pipe assembly.
Ensure that the small diameter pipe is bottomed out and
securely cemented in the Y concentric fitting.
_\ Roof Overhang
Maintain12" clearanceabove highestantici-
pated snowlevel or grade whicheveris greater.
A07736
Fig. 32 -Concentric Vent and Combustion-Air
Side Termination
9. Cement the furnace combustion air and vent pipes to the
concentric vent termination assembly. See Fig. 32 or Fig.
33 for proper pipe attachment.
31

10.Operatethe furnace through one heat cycle to ensure com-
bustion air and vent pipes are properly connected to the
concentric termination connections.
GASSUPPLYANDPIPING
FIRE AND EXPLOSION HAZARD
Failure to follow this warning could result in personal injury,
death, and/or property damage.
Models designated for Natural Gas are to be used with Natural
Gas ONLY, unless properly converted to use with Propane gas.
NOTE: The rating plate is stamped with the model number, gas
type and gas input rating. In addition, models manufactured for
sale in Canada have orifice size information stamped on the
rating plate.
Gas Supply Requirements
Gas supply pressure should be within minimum and maximum
values listed on rating plate. Pressures are usually set by gas
suppliers.
(See Propane Gas Conversion Kit instruction manual for furnaces
converted to Propane gas)
•Use only the Type of gas approved for this furnace. See rating
plate for approved gas type.
• A 1/8" NPT plugged tapping, accessible for a test gauge
connection,must be installed immediately upstream of the gas
supply connection to furnace.
•Gas supply pressure should be within minimum and maximum
values listed on rating plate. Pressures are usually set by gas
suppliers.
•Gas input must not exceed the rated input shown on the rating
plate. Overfiring will result in failure of heat exchanger and
cause dangerous operation.
• Do not allow minimum supply pressure to vary downward.
Doing so will decrease input to furnace. Refer to Table 5 for
Gas supply. Refer to Table 6 or Table 7 for manifold pressures.
Vent
Strap
(FieldSuppli_) AirC°mbusti°n
\
Vent
1" max,
Air 45°Elbow
(FieldSupplied)
Note:
Securingstrapmustbefieldinstalledto preventmovementofterminationkitinsidewall.
A07723
Fig. 33 -Concentric Vent Sidewall Attachment
Supply Pressure
Gas Type
Natural
Propane
Recommended Max.
7" 14"
11" 14"
Min.
4.5"
11"
Table 5 - Gas Pressures
Gas PipingRequirements
NOTE: The gas supply line must be installed by a qualified
service technician in accordance with all building codes.
NOTE: In the state of Massachusetts.
a. Gas supply connections MUST be performed by a li-
censed plumber or gas fitter.
b. When flexible connectors are used, the maximum
length shall not exceed 36"(914.4 mm).
c. When lever handle type manual equipment shutoff
valves are used, they shall be T-handle valves.
d. The use of copper tubing for gas piping is NOT ap-
proved by the state of Massachusetts.
1. Install gas piping in accordance with local codes, or in the
absence of local codes, the applicable national codes. Re-
fer to the current edition of NFPA 54/ANSI Z223.1 for
proper gas pipe size.
2. It is recommended that a manual equipment shutoff valve
be installed in the gas supply line outside the furnace.
Locate valve as close to the furnace as possible where it is
readily accessible. Refer to Fig. 34.
3. Use black iron or steel pipe and fittings or other pipe ap-
proved by local code.
4. Use pipe thread compound which is resistant to natural
and Propane gases.
5. Use ground joint unions and install a drip leg no less than
3" long to trap dirt and moisture before it can enter gas
control valve inside furnace.
NOTE: Refer to Fig. 34 for the general layout at the furnace.
The rules listed apply to natural and Propane gas pipe
installations.
NOTE: Install the gas pipe grommet to the furnace side panel
with the gas pipe entry. If needed, remove the 2" hole plug from
the plastic accessory bag and relocate to the open hole in the
furnace side panel.
6. Use two pipe wrenches when making connections to pre-
vent gas valve from turning.
7. Install a manual shut-off valve external to furnace casing
and tighten all joints securely.
8. If local codes allow the use of flexible gas appliance con-
nectors, always use a new listed connector.
Do not use a connector which has previously serviced an-
other gas appliance.
9. Flexible corrugated metal gas connector may NOT be
used inside the furnace or be secured or supported by the
furnace or ductwork.
10. Properly size gas pipe to handle combined appliance load
or run gas pipe directly from gas meter or Propane gas reg-
ulator.
11. Install correct pipe size for run length and furnace rating.
12. Measure pipe length from gas meter or Propane second
stage regulator to determine gas pipe size.
32

AdditionalPropaneConnection
Requirements
1. Have a licensed Propane gas dealer make all connections
at storage tank and check all connections from tank to fur-
nace.
2. If copper tubing is used, it MUST comply with limitation
set in National Fuel Gas Code or CGA codes.
3. Two-stage regulation of Propane gas is recommended.
PropaneConversion
FIRE, EXPLOSION HAZARD
Failure to follow this warning could result in personal injury or
death.
A Propane conversion accessory kit is required when
operating the furnace with Propane gas.
An accessory kit shall be used to convert to propane gas use, see
the furnace rating plate for the Propane conversion accessory kit
part number.
Supply Pressure
FIRE HAZARD
Failure to follow this warning could result in personal injury or
death.
Do NOT set input rating above that shown on rating plate.
1. A 1/8" NPT plugged tapping, accessible for a test gauge
connection, must be installed immediately upstream of the
gas supply connection to the furnace.
2. Gas input to burners MUST NOT exceed the rated input
shown on rating plate.
3. Do NOT allow minimum gas supply pressure to vary
downward. Doing so will decrease input to furnace. Refer
to Table 6 and Table 7 for normal gas supply and manifold
pressures.
ManifoldGas PressureAdjustment
SEE CHECKS AND ADJUSTMENTS, Manifold Gas
Pressure Adjustment in this manual.
DripLegand Union,Union*shouldbeoutsidethe
cabinet.Manualshut-off valveMUST beupstreamof
dripleg,union,andfurnace.
Manualshut-off
valve
VentPipe Grommet(SinglePipe)
Use elbowsand3" pipe nippleto connectvalveto
pipingwhenusingright sidegas pipeentry.
jl .......... .
/\
PropaneLow_,,_-_ /
sureswitch "_. _
REQUIRED.
* Union may be installed inside the cabinet when necessary
because of clearances.
Representativedrawingonly,somemodelsmayvary inappearance.
Model s may
have 1|or 2
:: pressur e
switch|es
/
F"
F"
F"
/
f
Fig. 34 - Typical Gas Piping for Upflow
•Alternative
installation
A07724
33

HEATING
VALUE
at ALTITUDE
BTU/CU, FT.
700
725
750
775
8OO
825
85O
875
9OO
925
95O
975
1000
1050
1100
MEAN ELEVATION FEET ABOVE SEA LEVEL
0 to 2001 to 3001 to 4001 to 5001 to 6001 to 7001 to
2000 3000 4000 5000 6000 7000 8000
Orifice Manifold Orifice Manifold Orifice Manifold Orifice Manifold Orifice Manifold Orifice Manifold Orifice Manifold
No, Pressure No, Pressure No, Pressure No, Pressure No, Pressure No, Pressure No, Pressure
42 3.6
42 3.5 42 3.4
42 3.3 42 3.2
41 2.9 43 3.7 43 3.6
....42 3.1 43 3.6 43 3.5 43 3.4
......... 43 3.7 43 3.6 43 3.4 43 3.3 44 3.6
.......... 43 3.5 43 3.4 44 3.7 44 3.6 44 3.4
43 3.4 43 3.3 44 3.6 44 3.5 44 3.4 44 3.2
44 3.7 44 3.6 44 3.4 44 3.3 44 3.2 44 3.1
44 3.7 44 3.5 44 3.4 44 3.2 44 3.1 45 3.6 45 3.5
44 3.5 44 3.3 44 3.2 44 3.1 45 3.6 45 3.5 45 3.3
44 3.3 44 3.1 45 3.7 45 3.5 45 3.4 45 3.3 45 3.2
44 3.2 45 3.6 45 3.5 45 3.4 45 3.2 45 3.1 46 3.1
48 3.6 45 3.3 45 3.2 45 3.1 48 3.1
46 3.3 45 3.0 46 3.0 46 2.9
Conversion: 1 inwc = .25 kPa
NOTE: Natural gas data is based on 0.60 specificgravity. For fuels with different specific gravity consult the National Fuel Gas Code ANSI
Z223.1-2006/NFPA 54-2006 or National Standard of Canada, Natural Gas And Propane Installation Code CSA B149.1-05.
Table 6 - Natural Gas Manifold Pressure
HEATING VALUE MEAN ELEVATION FEET ABOVE SEA LEVEL
at ALTITUDE 0 to 2001 to 3001 to 4001 to 5001 to 6001 to 7001 to
BTU/CU. FT. 2000 3000 4000 5000 6000 7000 8000
2500 10.0 8.9 8.4 10.0 10.0 10.0 10.0
Orifice Size #55 #55 #55 i#561 i#561 i#561 i#561
Conversion: 1 inwc = 25 kPa
NOTE: Propane data is based on 1.53 specific gravity. For fuels with different specific gravity consult the National Fuel Gas Code ANSI
Z223.1-2006/NFPA 54-2006 or National Standard Of Canada, Natural Gas And Propane Installation Code CSA B149.1-05.
NOTE: The derating of these furnaces at 2% (Natural Gas) and 4% (Propane Gas) has been tested and design-certified by CSA.
In Canada, the input rating must be derated 5% (Natural Gas) and 10% (Propane Gas) for altitudes of 2,000 to 4,500 above sea level. Use the 2001 to
3000 column in Table 6 and Table 7.
Table 7 -Propane Gas Manifold Pressure
The burner orifice part nos. are as follows:
Orifice #41 333730-701
Orifice #42 333730-702
Orifice #43 333730-703
Orifice #44 333730-704
Orifice #45 333730-705
Orifice #46 333730-709
Orifice #54 333730-706
Orifice #55 333730-707
Orifice #56 333730-708
GeneralDeratingRules
1. These furnaces may be used at full input rating when in-
stalled at altitudes up to 2,000'. When installed above
2,000', the input must be decreased 2% (natural) or 4%
(Propane) for each 1000' above sea level in the USA. In
Canada, the input rating must be derated 5% (natural) or
10% (Propane) for each 1000' above sea level. See Table 6
or Table 7 for required high altitude input rate.
2. For operation with natural gas at altitudes above 2,000',
orifice change and/or manifold pressure adjustments may
be required for the gas supplied. First consult your local
gas supplier, then refer to Table 6 for required pressure
change and/or orifice change for high altitudes.
3. For operation with Propane gas, gas orifices MUST be
changed and manifold pressure MUST be maintained as
per Table 7. Orifices can be ordered through our distribut-
or. (See Fig. 35).
High Altitude Input Rate =
Nameplate Sea Level Input Rate x (Multiplier)
[USA]
High Altitude Multiplier
Elevation
2001'-3000'
3001'-4000'
4001'-5000'
5001'-6000'
6001'-7000'
7001'-8000'
Natural Gas
0.95
0.93
0.91
0.89
0.87
0.85
Propane Gas
0.90
0.86
0.82
0.78
0.74
0.70
Based on mid-range of elevation.
HighAltitudeAir PressureSwitch
Altitudes over 4,000' may require a different air pressure switch
than the one installed at the factory. Check parts list for pressure
switch and consult your distributor for part number and
availability. In Canada, provincial codes may govern installation
of switch. Check with governing authorities.
34

ChangingOrificesfor HighAltitude
ELECTRICAL SHOCK, FIRE OR EXPLOSION
HAZARD
Failure to follow this warning could result in personal injury,
death, and/or property damage.
Turn OFF electric power (at disconnect) and gas supply (at
manual valve in gas line) when installing orifices. Installation
of orifices requires a qualified service technician.
NOTE: Main burner orifices can be changed for high altitudes.
1. Disconnect gas line from gas valve.
2. Remove manifold from furnace.
3. Remove the orifices from the manifold and replace them
with properly sized orifices.
4. Tighten orifices so it is seated and gas tight. (See Fig. 35)
5. Reinstall manifold. Ensure burners do NOT bind on new
orifices.
NaturalGas InputRatingCheck
SEE CHECKS AND ADJUSTMENTS, Natural Gas Input
Rating Check in this manual.
Measure from face of orifice
to the back side of the
manifold.
1.11" (28.2mm)
1.21" (30.8ram)
Fig. 35 - Changing Orifices
Final Gas PipingCheck
A07725
FIRE OR EXPLOSION HAZARD
Failure to follow this warning could result in personal injury,
death, and/or property damage.
Never test for gas leaks with an open flame. Use a
commercially available soap solution made specifically for the
detection of leaks to check all connections. A fire or
explosion could result causing property damage, personal
injury and/or loss of life.
1. The furnace and the equipment shut off valve must be dis-
connected from the gas supply piping system during any
pressure testing of that system at test pressures in excess of
1/2" PSIG. Close the manual shut-off valve before testing
at such pressures.
2. When installation is complete, test all pipe connections for
leaks with the gas pressure less than 1/2" PSIG to the gas
valve.
3. The furnace must be isolated from the gas supply system
by closing the equipment shut off valve during any pres-
sure testing of the gas supply system at test pressure equal
to or less than 1/2" PSI (3.5 kPa).
4. Apply a commercial soap solution to all joints to test for
leaks. Correct any leaks indicated by bubbles.
5. Correct even the smallest leak at once.
6. Check for leaks at gas valve and orifice connections to the
burner manifold while the furnace is operating.
ELECTRICALWIRING
PowerSupply Wiring
The furnace MUST be electrically wired and grounded in
accordance with local codes, or in the absence of local codes with
the latest edition of The National Electric Code, ANSI NFPA 70
and/or The Canadian Electric Code CSA C22.1.
The power supply to the furnace connections must be between
104 VAC and 127 VAC during furnace operation for acceptable
performance.
Field wiring connections must be made inside the furnace
connection box. A suitable strain relief should be used at the
point the wires exit the furnace casing.
Copper conductors shall be used. Line voltage wires should
conform to temperature limitation of 63 ° F (35 ° C) rise and be
sized for the unit maximum amps stated on the rating plate. Add
the full load amps for potential field-installed accessories such as
electronic air cleaners and humidifiers that would receive power
from the furnace control. The furnace control is rated for a
maximum of 1.0 amp combined for EAC and HUM. Consult
NEC or local codes for proper wire and circuit sizing.
NOTE: Furnace will not have normal operation if line polarity is
reversed. Check ALL field and control connections prior to
operation.
Junction Box (J-Box) Relocation
The J-box is installed on left side of casing. An alternate j-box
location on right side can be used.
1. Remove bag containing two hole plugs and two self tap-
ping screws from loose parts bag in blower compartment.
2. Remove two screws holding J-Box to casing.
3. Move large hole plug from right to left J-Box location.
4. Clip wire tie holding J-Box wires.
5. Move J-Box to alternate location and attach using two self
tapping screws from bag.
6. Apply two hole plugs from bag at left J-Box location.
Thermostat
Thermostat location has an important effect on the operation of
the unit. Follow instructions included with thermostat for correct
mounting and wiring.
Low voltage connections to furnace must be made on terminal
board of furnace control.
Heat anticipator setting will need to be measured if 24VAC
humidifier is installed. Measure current in series from R to W at
the thermostat. Be sure 24VAC humidifier is wired up to control.
Allow furnace to operate for 2 minutes before recording the AC
amperage reading. Set anticipator on thermostat to recorded
value.
11
35

11
OptionalEquipment
All wiring from furnace to optional equipment MUST conform to
local codes or, in the absence of local codes with the latest edition
of The National Electric Code, ANSI NFPA 70 and/or The
Canadian Electric Code CSA C22.1. Install wiring in accordance
with manufacturer's instructions. The wiring MUST have a
minimum temperature rating of 105 ° C.
Humidifier/ElectronicAir Cleaner
The furnace is wired for humidifier and/or electronic air cleaner
connection.
REDUCED FURNACE LIFE HAZARD
Failure to follow this caution may result in reduced furnace
life.
Do NOT exceed 115V/1.0 amp. maximum current load for
both the EAC terminal and the HUM terminal combined.
HUMIDIFIER - The HUM (115) is energized when the pressure
switch closes on a call for heat. The HUM is energized when the
inducer is energized.
ELECTRONIC AIR CLEANER - EAC is energized when there
is a blower speed call, except is NOT energized when blower
operates in the hard-wired continuous fan mode.
FurnaceControl
The furnace control is preset at the factory with a fixed blower
ON delay of 30 seconds in the heating mode. The blower OFF
timing is preset at 140 seconds. If desired, the fan OFF delay can
be reset to obtain the longest delay times while still maintaining
comfort levels. See "Furnace Wiring Diagram" .
NOTE: Junction Box can be
mounted to either the left or right r-,/
side.
115_60 Hz
Box
Gr_nd
Low Voltage
Terminal Board
J
NOTE: 115 VAC/60Hz/single-phase
Operating voltage range*: 127 VAC max, 104 VAC min.
* Permissible limits of voltage at which unit will operate satisfactorily
Representativedrawing only,some models mayvary in appearance.
A07726
Fig. 36 - Electrical Connections
FurnaceControl Fuse
The 24V circuit contains a 5-amp, automotive-type fuse located
on furnace control. (See Fig. 37) Any electrical shorts of 24V
wiring during installation, service, or maintenance may cause
fuse to blow. If fuse replacement is required, use only a fuse of
identical size (5 amp.)
BlowerOff
DelayJumper
HUM
jDiagnosticLight
115VAC
FUSE
EAC
Fig. 37 - Control Board
DUCTWORKAND FILTER
A07727
CARBON MONOXIDE POISONING HAZARD
Failure to follow this warning could result in personal injury or
death.
Do NOT draw return air from inside a closet or utility room
where furnace is located. Return air duct MUST be sealed to
furnace casing.
Installation
NOTE: Design and install the air distribution system to comply
with Air Conditioning Contractors of America manuals and/or
NFPA pamphlets 90A and 90B or other approved methods that
conform to local codes and good trade practices.
1. When furnace supply ducts carry air outside furnace area,
seal return air duct to furnace casing and terminate duct
outside furnace space.
2. Install air conditioning cooling coil (evaporator) on outlet
side of furnace.
3. For furnaces installed without a cooling coil it is recom-
mended that the outlet duct be provided with a removable
access panel. This panel should be accessible when the
furnace is installed so the exterior of the heat exchanger
can be viewed for inspections. The access panel MUST be
sealed to prevent leaks.
4. If separate evaporator and blower units are used, install
good sealing dampers for air flow control. Chilled air go-
ing through the furnace could cause condensation and
shorten the furnace life.
NOTE: Dampers (field supplied) can be either automatic or
manual. Manually operated dampers MUST be equipped with a
means to prevent furnace or air conditioning operation unless
damper is in the full heat or cool position.
36

CARBON MONOXIDE POISONING HAZARD
Failure to follow this warning could result in personal injury or
death.
Cool air passing over heat exchanger can cause condensate to
form resulting in heat exchanger failure.
Connections
NOTE: On upflow installations, return air can enter through
either side, both sides, or the bottom. On horizontal installations
the return air must enter through the knockout opening in the
lower panel of the furnace. Return air can not enter through rear
of the furnace. When the furnace is located in an area near or
adjacent to the living area, the system should be carefully
designed with returns to minimize noise transmission through the
return grille. Any blower moving a high volume of air will
produce audible noise which could be objectionable to when the
unit is located very close to living areas. It is advisable to route
the return air ducts under the floor or through the attic.
1. For side connections using a 16" x 25" (406.4 x 635.0
mm) filter, cut out the embossed area shown in Fig. 38.
This will provide a 141/2 '' x 221/2 '' (368.3 x 571.5 mm)
approximate opening.
NOTE: Furnaces with 5 ton cooling rating may require both
(left and right) side return or one side and bottom return.
Side return air duct(s) is not permitted with horizontal
furnace installation.
A = 141/2" Height of Cutout for 16" x 25" Filter
B = 221/2" Width of Cutout for 16" x 25" Filter
B
Embossed Area
on Side of Furnace
Fig. 38 - Side Return Air Cutout
Bottom
A07728
2. Bottom returns can be made by removing the knockout
panel in the furnace base. Do NOT remove knock-out ex-
cept for a bottom return.
3. Installation of locking-type dampers are recommended in
all branches, or in individual ducts to balance system's air
flOW.
4. Non-combustible, flexible duct connectors are recommen-
ded for return and supply connections to furnace.
5. If air return grille is located close to the fan inlet, install at
least one, 90 ° air turn between fan and inlet grille to re-
duce noise.
NOTE: To further reduce noise, install acoustical air turning
vanes and/or line the inside of duct with acoustical material.
Sizing
Existing or new ductwork MUST be sized to handle the correct
amount of airflow for either heating only or heating and air
conditioning.
Insulation
1. Insulate ductwork installed in attics or other areas exposed
to outside temperatures with a minimum of 2" (50.8 mm)
insulation and vapor barrier.
2. Insulate ductwork in indoor unconditioned areas with a
minimum of 1" (25.4 mm) insulation with indoor type va-
por barrier.
Filters
A Filter must be used:
Filters are not supplied with these furnaces, but can be purchased
from the distributor.
Use either filter type:
• Washable, high velocity filters are based on a maximum
air flow rating of 600 FPM.
• Disposable, low velocity filters are based on a maxim-
um air flow of 300 FPM when used with filter grille.
• See Circulating Air Blower Data for additional data.
NOTE: Disposable, low velocity filters may be replaced with
washable, high velocity filter providing they meet the minimum
size areas. Washable, high velocity filters can be replaced ONLY
with same type and size.
Fig. 39 - Side Mounted Filter Rack
A07729
FilterInstallationusing OptionalFilter Rack
When installing or removing a bottom mounted filter, slide the
two side filter clips to the back of the furnace BEFORE installing
or removing. This will allow the filter to clear the front raised
edge of the furnace. Insert filter into side clips first and push filter
back until it is fully engaged into back clip. When filter is in
place, slide clips back into place midway on filter as shown in
Fig. 40 and Fig. 41.
37

Center Clip
side-to-side ",,
Fig. 40 -Bottom Mounted Filter Rack
A07691
application. The coil installation instructions must be consulted
for proper coil location and installation procedures. With a
parallel flow arrangement, dampers must be installed to prevent
chilled air from entering the furnace. If manually operated
dampers are used, they must be equipped with a means to prevent
operation of either unit unless the damper is in full heat or full
cool position.
A 3" (76.2 mm) clearance is required on the right side of the
furnace in order to run the copper or plastic tubing for the
condensate drain line.
UNIT OPERATIONAL HAZARD
Failure to follow this caution may result in improper unit
operation.
This furnace is not approved for use with "N" style
evaporator coils. If installed with an "N" style evaporator
coil, improper limit operation may occur.
CHECKSANDADJUSTMENTS
NOTE: Verity the input rate of the furnace.
26 Ga. Galvanized Steel
FAST part number 1008482
11/4"
.>
\-_" 11116,,
A07730
Fig. 41 -Filter Clip Construction
Refer to Fig. 42 and for guidelines to install filters. Furnaces
which require larger filter media and have limited clearances on
one side of furnace, require a standoff filter rack, see Fig. 42,
available from your distributor.
Using Optional
StandoffFilter
Rack
Fig. 42 - Standoff Filter Rack
A07731
AdditionOfAir Conditioning
When a refrigeration coil is used in conjunction with this unit, it
must be installed parallel with or on the discharge side of the unit
to avoid condensation on the heat exchanger. All furnaces are
designed with a break-away duct flange on the supply air side of
the furnace. This allows for installation in the horizontal right
FIRE OR EXPLOSION HAZARD
Failure to follow this warning could result in personal injury,
death and/or property damage.
Turn OFF gas at shut off before connecting manometer.
Startup
NOTE: Refer to the start-up procedures in the "User k
Information Manuar' or to the "Operating Instructions Label" on
the furnace.
38
ELECTRICAL OPERATION HAZARD
Failure to follow this warning could result in personal injury,
death, and/or property damage.
If any sparks, odors or unusual noises occur, immediately shut
OFF power to the furnace. Check for wiring errors or
obstruction to blower.
GasSupply Pressure
Gas supply pressure should be within minimum and maximum
values listed on rating plate (minimum and maximum pressures,
refer to Table 5). Pressures are usually set by gas suppliers.
ManifoldGas PressureAdjustment
NOTE: Make adjustment to manifold pressure with burners
operating.
1. Remove the burner compartment door.
2. Remove the blower compartment door. Place a jumper
across furnace controls R to W. Replace blower compart-
ment door.
3. With gas OFF, connect manometer to tapped opening on
gas valve. Use manometer with a 0 to 15 inches of water
column range.

4.TurngasONandremoveadjustmentscrewcoverongas
valve.Turnadjustingscrewcounterclockwisetodecrease
manifoldpressureandclockwisetoincreasepressure.
NOTE:AdjustmentscrewcoverMUSTbe replacedongas
controlvalvebeforereadingmanifoldpressureandoperating
furnace.
5.SetmanifoldpressuretovalueasshowninTable6 or
Table7 underGASSUPPLYANDPIPINGsectionin
thismanual.
6.Whenthemanifoldpressureisproperlyset,replacethead-
justmentscrewcoveronthegascontrolvalve.
Regulator Adjustment
UnderCap
INLET
..lj .....
Inlet
Pressure
Tap1/8NPT o
Fig. 43 - Typical Gas Valve
"_ OI Outlet
Pressure
Tap
1/8NPT
'1
OUTLET
A07732
Face
Fig. 44 - Main Burner
NOTE: For Ignite location see Fig. 45
21/16{52.4)
Fig. 45 - Igniter Location
A07734
A07735
7. Remove blower compartment door. Remove jumper wire
from thermostat connection on furnace control board. Re-
move manometer connection from manifold pressure tap,
and replace plug in manifold.
8. Check for leaks at plug.
9. Replace the burner and blower compartment doors.
NaturalGas InputRatingCheck
NOTE: The gas meter can be used to measure input to furnace.
Rating is based on a natural gas BTU content of 1,000 BTU's per
cubic meter. Check with gas supplier for actual BTU content.
1. Turn OFF gas supply to all appliances and start furnace.
Use jumper wire on R to W for Heat.
2. Time how many seconds it takes the smallest dial on the
gas meter to make one complete revolution. Refer to
Example.
NOTE: If meter uses a2 cubic foot dial, divide results
(seconds) by two.
Natural Gas
BTU Content
1,000
Example
No. of Time Per
Seconds Cubic Foot
Per Hour in Seconds
3,600 48
BTU Per
Hour
75,000
1,000 x 3,600 +48 = 75,000 BTUH
3. Remove jumper wire from R to W.
4. Relight all appliances and ensure all pilots are operating.
MainBurnerFlameCheck
Allow the furnace to run approximately 10 minutes then inspect
the main burner. See Fig. 44.
Check for the following (Fig. 44):
• Stable and blue flames. Dust may cause orange tips or wisps of
yellow, but flames MUST NOT have solid, yellow tips.
• Flames extending directly from burner into heat exchanger.
• Flames do NOT touch sides of heat exchanger.
If any problems with main burner flames are noted, it may be
necessary to adjust gas pressures, or check for drafts.
TemperatureRiseCheck
The blower speed MUST be set to give the correct air
temperature rise through the furnace as marked on the rating
plate. Temperature rise is the difference between supply and
return air temperatures.
To check temperature rise,use the following procedure:
1.Place thermometers in supply and return air registers as close to
furnace as possible, avoiding direct radiant heat from heat
exchangers.
2.Operate furnace continuously for 15 minutes with all registers
and duct dampers open.
3.Take reading and compare with range specified on rating plate.
4.If the correct amount of temperature rise is NOT obtained, it
may be necessary to change blower speed. A higher blower speed
will lower the temperature rise. A lower blower speed will
increase the temperature rise.
ChangingBlowerSpeed
ELECTRICAL SHOCK HAZARD
Failure to follow this warning could result in personal injury or
death.
Turn OFF power to furnace before changing speed taps.
NOTE: The speed taps that the manufacturer sets from the
factory for this product are based on a nominal 400 CFM per ton
cooling and the basic mid range on the temperature rise for
heating.
Since the manufacturer cannot establish the static pressure
that will be applied to the unit, it is the responsibility of the
installer dealer/contractor to select the proper speed taps for
the application when the unit is installed.
If it is necessary to change speeds, refer to steps below.
39

REDUCEDFURNACELIFE HAZARD
Failure to follow this caution may result in reduced furnace
life.
Use ONLY the blower motor speed taps insert indicated in
the Circulation Air Blower Data for setting air temperature
rise.
Wire Color
Black
Orange*
Blue
Red
Motor Speed
High
Med-High
Medium
Low
* Med-High speed may not be provided on all models.
Table 8-Blower Speed Chart
1. Refer to Furnace Wiring Diagram for location of the heat-
ing and cooling speed taps located on the furnace control
as well as location of unused blower motor speed leads.
Use the chart (Table 8) to determine the blower motor
speed settings.
2. Change the heat or cool blower motor speed by removing
the motor lead from the "Heat" or "Cool" terminal and
replace it with the desired motor speed lead from the
"Unused Motor Lead" location. Connect the wire previ-
ously removed from the "Heat" or "Cool" terminal to the
vacated "Unused Motor Lead" terminal.
3. If the same speed must be used for both heating and cool-
ing, remove the undesired motor speed lead from the
"Heat" or "Cool" terminal and connect that lead to the
open terminal at "Unused Motor Lead" location. Attach a
jumper between the "Heat" and "Cool" terminals and the
remaining motor speed lead.
NOTE: For motors with (4) speed leads, it will be necessary to
tape off the terminal of the motor speed lead removed from the
"Heat" or "Cool" terminal with electrical tape since an open
terminal will not be available at the "Unused Motor Lead"
location.
Continuous-Fan Operation using "G"
Energizing the "G" terminal on the furnace control provides
continuous fan operation. This is done by connecting the G
terminal of the thermostat to the Gterminal on the furnace
control. When the FAN switch is turned from auto to ON the fan
will operate continuously at "HEAT" speed. EAC will be
energized in this mode.
NOTE: In heating, the fan will turn off during furnace ignition
and warm up then restart at heating speed.
HardWiredContinuousFanOperation
A terminal is provided on the furnace control board located in the
circulating blower compartment for operation of the continuous
fan option. This connection is intended for the low speed motor
tap, and has a lower contact rating (8 amps) than the heat and
cool taps. When the low speed blower lead is connected to this
terminal, this will provide low speed blower operation whenever
the other two speeds (Heat or Cool) are not energized.
Thoroughly check the system after modification to ensure the
proper operation of the circulating air blower in all modes of
operation.
SeparateSpeed Selectionsfor Heat,Cool,
andContinuousFan
Connect low speed lead from circulating motor to the "Cont."
terminal at the furnace control. The appropriate motor leads
should already be connected to the "Heat" and "Cool" terminals.
Heatingand ContinuousBlowerSpeed the
Same
If it is necessary to operate the heating speed and continuous
blower speed using the same blower speed, connect a jumper
between the "Heat" and "Cont." terminals on the furnace
control.
NOTE: There should be only ONE motor lead going to the
"Heat" and "Cont." terminals.
FURNACEMAINTENANCE
FIRE, EXPLOSION, OR CARBON MONOXIDE
HAZARDS
Failure to follow this warning could result in personal injury,
death and/or property damage.
It is recommended that the furnace be inspected and serviced
on an annual basis (before the heating season) by a qualified
service technician.
ELECTRICAL SHOCK, FIRE OR EXPLOSION
HAZARD
Failure to follow this warning could result in personal injury,
death, and/or property damage.
Before servicing, disconnect all electrical power to furnace.
When servicing controls, label all wires prior to disconnecting.
Reconnect wires correctly.
Verify proper operation after servicing.
See "User's Information Manual" and the "Service
Manual".
SEQUENCEOF OPERATION
& DIAGNOSTICS
Following is the normal operating sequence:
Cooling (Y) Request:
24VAC signals applied to Y & Gterminals of FCB (furnace
control board)
• Cool motor speed is energized after 5second Cool Fan On
Delay time.
Y & G signals removed from FCB
• Cool motor speed is de-energized after 90 second Cool Fan
Off Delay time.
ContinuousCirculatingFan (G) Request:
• 24 VAC signal is applied to Gterminal of the FCB.
• Heat motor speed is energized without delay.
•Gsignal removed from FCB.
4O

• Heat motor speed is de-energized after 5 second delay.
NOTE:
(1.) Furnace de-energizes the fan during the heat ex-
changer warm-up period on a call for Heating
that occurs during a G request unless a blower
motor lead is connected to the Cont terminal on
the FCB, in which case see NOTE 2).
(2.) Heating or Cooling requests received during a Fan
request cause the fan speed to change to the ap-
propriate heat or cool speed after the Fan on
Delay time expires. The fan returns to continuous
circulating speed after the selected Fan Off Delay
time expires following loss of the Heating or
Cooling request.
ContinuousCirculatingFanHard-Wired
(Cont) Request
Field selected low speed motor tap installed on "CONT"
terminal.
• Low speed is energized when power applied to furnace.
Operates at this speed continuously while there are no other
blower demands from furnace control. Fan demands from
furnace control for heat, cool or "G" will override hard-wired
speed tap.
NOTE: EAC is NOT active for hard-wired mode but IS active
for fan demands from furnace control for heat, cool and "G".
Heating (W)Request:
Heating (W) Request:
• 24 VAC signal applied to W terminal of FCB.
• Inducer motor turns on and the pressure switch(es) close(s)
• Following a 15 second prepurge delay, after the pressure
switches closes, the igniter begins a 17 second warm-up.
• The gas valve is energized, the main burners light and flame is
sensed.
• The igniter is de-energized after the main burners ignite.
• FCB will delay blower operation for the 30 seconds timed from
the opening of the gas valve.
• W signal removed from FCB.
• The gas valve de-energizes and the main burners go out.
• The inducer runs for a 15 second postpurge period.
• The fan stays at Heat speed.
• The fan de-energizes after the selected Heat Fan Off Delay
time expires, timed from the gas valve de-energizing.
HUMIDIFIER - The 24V HUM is energized when the pressure
switch closes on a call for heat. The 115V HUM (called HUM on
Control) is energized when the inducer is energized.
ELECTRONIC AIR CLEANER - EAC is energized when there
is a blower speed call. It is NOT energized when blower operates
in the hard-wired continuous fan mode.
NOTE: If a new Heating request arrives while the control is
waiting in the Heat Fan Off Delay time, the FCB will wait for the
selected Heat Fan Off Delay then start a new heating cycle as
long as the heat call remains.
HeatingRequestwith GasShut Off:
24 VAC signal applied to W terminal of FCB.
The FCB will attempt 4 cycles for ignition then go to soft lockout
for 3 hours then try for ignition again as long as the heat call
remains. Power reset will clear lockout.
• Inducer motor turns on
• Following a 15 second prepurge delay, the igniter begins warm
up.
• The igniter glows red-hot for 22 seconds, then turns off. The
FCB flashes error code 6.
• The igniter stays off for 17 seconds, then begins to warm up
again.
• The igniter glows red hot for 22 seconds then turns off. The
FCB continues flashing error code 6.
• The igniter stays off for 17 seconds, then begins to warm up
again.
• The igniter glows red hot for 22 seconds then turns off. The
FCB continues flashing error code 6.
• The igniter stays off for 17 seconds, then begins to warm up
again.
• The igniter glows red hot for 22 seconds then turns off. The
FCB proceeds to soft lockout and stops flashing error code 6
and begins flashing error code 6 + 1.
• The inducer motor de-energizes after a 15 second post purge.
BlowerOff
DelayJumper
24 VAC _
HUM .........._
DiagnosticLight
FUSE
A07733
Fig. 46 - Control Board
41

H
ControlBoard DiagnosticCodes
OFF =24VAC or 115VAC is off, fuse is open
Heartbeat -- Normal operation or no previous Diagnostic Code
ON SOLID -- Soft Lockout - Furnace Control Error (1 hr. delay) If code repeats immediately following power reset
then replace control
1 Flash = Not used
2 Flashes -- Pressure switch(es) closed when should be open
3 Flashes -- Pressure switch open when should be closed
4 Flashes -- Limit or roll-out switch open (less than 2 minutes)
5 Flashes -- Flame sensed out of sequence
6 Flashes -- Failure to ignite or flame sense lost while running
6 + 1 Flashes -- Soft Lockout - Max trials for ignition reached (3 hr delay)
7 Flashes -- Soft Lockout - Limit or roll-out switch open longer than two minutes (1 hr delay) (roll-out switch
requires manual reset)
8 Flashes -- Permanent Lockout - Gas valve relay contact stuck closed or miswired gas valve (power reset only)
10 Flashes -- Line voltage (115VAC) polarity reversed. If twinned, refer to twinning kit instructions
If status code recall is needed, briefly (2-3 seconds) remove then reconnect one limit switch wire (main or rollout) to display last stored status code. Do not
remove power or blower door before initiating status code recall or code will be lost. Code is automatically cleared after 72 hours or upon power reset.
* Proper flame sense microamps: 0.7 microamps D.C. minimum, 2.0 - 4.0 microamps nominal
Copyright 2009 CAC /BDP •7310 W. Morris St. •Indianapolis, IN 46231 Printed in U,S,A. Edition Date: 03/09
Manufacturer reserves the right to change, at any time, specifications and designs without notice and without obligations,
Catalog No: IM-PG9YAA-03
Replaces: IM- PGOYAA-02
42