PEERLESS Boiler Manual L0308197
User Manual: PEERLESS PEERLESS Boiler Manual PEERLESS Boiler Owner's Manual, PEERLESS Boiler installation guides
Open the PDF directly: View PDF
.
Page Count: 19

EC/ECT
Boilers
Installation,
Operation b
Maintenance
Manual
Pr=-r=-I_LESS"
CAST IRON BOILERS

Packaged or Knockdown, Hot Water or Steam Boilers
11 Sizes 3-6 Sections .75 to 3.0 GPH Input 82.9% to 86.6% AFUE
Natural Draft (chimney) Venting
Factory Assembled Sections on Knockdown Boilers
•Reduces Installation Time
High Efficiency Flame Retention Burners
•Choice ofBeckett, Carlin or Riello
Full Plate Swing-Out Door
•Standard on All Boilers
•Provides Easy Access to Combustion Chamber AreaJor Cleaning and Servicing
Large Water Content, Wet Base Section Design
•Ideal for Steam and Large Volume Hot Water Applications
Steel Push Nipples
• Provide a Permanent Woter Tigh[ Seal Between Sections
• Unaffected by Petroleum and Other Contaminants
Easy to Clean
•Flueways carl be Cleaned from Either the Left Side or Top
Deluxe Insulated Enameled Steel Jacket
•Reduces Boiler Heat Loss
Safety Controls
•Probe or Float Type Low Water Cut OffApprovr_d on Steam Boilers
Tankless Coils
•For Domestic Hot Water Production on Hot Water Boilers
• Honeywell Operating Controls
• Barometric Draft Damper
•Taco 007 Circulalor on Packctged WcJler Boilers
•Float Type LWCO on Packagt'd Steam Boilers
\ Ix .,,p_o__ I• "l_mkless Coils
•Gnlnc!lbs Circulalor on Pctckaged Water Boilers
.,,_ *Pcob<" Tt.ip_" LWCO olt Packaged Sly,am Boilers
P_'_I'It'ss Boilers is i)It'as_'_{ to QI]_'I oll(' QJ l]lt" IIl()sl co_lpr_.lll'llsit,t' iP(llT_lill_] i)fofjFQlll._ ill lh(' ill(_lisll_t]. All Pt,t'_l(_ss r(,sid_'tlti_ll
casl i!ott I)oilt'is irlt'ltt_l_" _t {illl oae ycat tP(llTTII!l{I. A [Jlllilt'tl. l([i'limt' tt,(¢lr(ull{I is ptY)l,i(]t'({ [or lilt" ('(isl iroii ._t'clioiIs o[ P_'('i[('_s
rz'sidt'llliQl ttot It'(lll'I t)oilt't,_. Pt't'rlt',_s also t)r_)t'itl_'s _l liIIlil+'_l I('ll []t'(ll II'(ll'l'Cllll!] Oll IIR" ('CISl il_)l] _;t'('liOIIS Q]'ilS r('_i(l('Illi(I/ slt'Cllfl
I)oilt'Is. l;'it,_" _llld ll'll !]('(l! <t','li'_Kl_'(I [t,(ll'l'(lll_it'_q ()It 131111.% (lli(l Itll)Ol CIl'(' IIolt, (IP_lil(l!)l_'. PI<'_i.';_' ('Oll.'_llll P('('tl('._.'_ [$oil('r.'_ li)r ('OllllIl('l('
{f!(ll'l'(lllll] it!Jorm(lliol£.
Peerless Boilers * 610-367-2153 • www.peerless-heater.eom
FAB EC R_{303 IM)
Prrn_l d _ll U S A

Background Information -Draft Requirements
Modern boilers operate with higher efficiencies than older boilers. Smaller flueways, as well as bars, pins
and fins are designed into modem boilers to transfer as much heat as possible from the hot gases to the
water or steam and prevent heat loss up the chimney. However, these design features result in higher pres-
sure, or draft loss, in the boiler.
This draft loss must be taken into account when installing an oil boiler into a new or old chimney. New
chimneys are less likely to have poor draft. However, they must have sufficient draft to support combus-
tion. A -.06" draft is desirable and preferred. Older, unlined chimneys may require a replacement liner to
have them perform well enough to support combustion.
An example follows:
Chimney Draft
Old installation New installation
-.04" -.04" Comments
No change, but older chimneys
(especially unlined ones) have
leaks which reduce draft.
Boiler Design Pressure Drop +.01" +.04" Required for mandated
efficiency increases.
Draft Over Fire -.03" 0.00" The old installation would have
had a higher temperature in the
chimney [as high as 800 degrees
vs. 400 degrees F], which would
increase the draft.
The above readings are 'cold' readings [before the boiler and chimney are heated up].
A-.01 _ to -.02" minimum draft over fire is required for a good installation where no oil fumes
would be present. The draft would vent them up the chimney.
The above discussion which concerns draft in the chimney and draft loss in the boiler, is incomplete with-
out discussing the effect of draft on the burner. Very simply, increasing the fuel usage [higher gallonage] on
a unit which has multiple firing rates, requires more air for combustion and a higher draft loss in the boiler.
As an example, increasing the firing rate 1/4 gallon will increase the draft loss in the unit by approximately
+.01". The actual burner used on a particular boiler also effects the draft and smoke condition. The use of
a burner supplied by Peerless Heater Company wouM assure you of a quality, trouble free installation.

INSTALLATIONINSTRUCTIONS-SERIES EC and ECT
Readcarefullybeforebeginningwork.It willsavetime.Studythe includeddrawings.
This boilermust beinstalledby a qualifiedcontractor.
The boiler warrantycan be voidedifthe boiler isnot installed,maintained,andserviced correctly.
Theequipmentshallbe installedinaccordancewiththoseinstallationregulationsinforceinthe localareawherethe installationis to bemade,includingthe
currenteditionof NFPA-31.Theseshallbe carefullyfollowedin allcases.Authordieshavingjurisdictionshallbe consultedbeforeinstallationsare made.
A-ACCESSIBILITYCLEARANCES
1 - To provide for reasonableconditionsof accessibilityfor servicing,the following minimumclearancesare recommendedbetweenthe boiler and
adjacentwallsor otherappliances--atleast24" inthe front,rearand on both sides.
B- AIRFORCOMBUSTIONANDVENTILATION
1 - Be certainadequatefacilitiesare availableto provideairfor satisfactorycombustionandventilation.
2 - AppliancesLocatedin UnconfinedSpaces.
a. For installationsin unconfinedspaceswith conventionalconstructionand largeareas suchas basements,the supplyof air for combustionand
ventilationcanusuallybe consideredadequate.
3 - AppliancesLocatedin ConfinedSpaces.
a. If all air for combustionand ventilationisto comefrom withinthebuilding;two openings,one nearthe ceilingandone nearthe floor of the boiler
roomshall be providedwiththe minimumfree area of eachopeningequalto 140sq. in. pergallonof oil burned.
b. If all air for combustionandventilationis tocome fromoutsidethebuilding;twoopenings,one neartheceilingand one nearthefloor of the boiler
roomshall beprovidedwiththeminimumfree areaof eachopeningequalto 35 sq. in. par gallonof oil burned.If ductsare usedto conveythe air,
areasof 35 sq. in.per gallonof oil burnedfor verticalductsor 70 sq.in. per gallonof oil burnedfor horizontalductsareto beprovided.Ductsshall
havethesame area as thefree area of theopeningsto whichthey areconnected.
C-SETTINGBOILERBLOCK
1-The Series EC/ECT boiler sectionsare factoryassembledwiththe target wallshipped in place. Providea levelfoundation,locatedas close as
possibleto the centerofthe heatingsystemandto thechimney.Theheatingsurfaceof theSedesEC/ECTboilersis designedto be cleanedfromeither
thetop or left side of the unit.Allowadequateclearanceon the leftof unit if servicingisto bedonefromthe side.
2 - Open fluecollector carton.Removefluecollector(Item9, Fig. 4) and hightemperaturerope.Lay rope(Item8, Fig.4) ontop of boileragainstbead
provided.Placefluecollectorontop of ropeand attachto boilerwith1/4"-20x 13/4"studswith nutsthroughfluecollectorbracketsintothetappedlugs
providedin the topof the boilerendsections.Draw nutsdownsnugly.
3 - Removeclean-outcoverplatesandinsulation(25).Eachclean-outcoverplateisattachedto the boilerby usingtwo carriagebolts,nutsandwashers(24).
Installthe carriagebolts into thenotchat the top andbottomof eachclean-outopening,then securethemwith a flatwasherand steelnutas shownin
Figure1 lockingthemintoplace.Pressthe clean-outplatewithinsulationoverthe protrudingcarriageboltsuntiltheboltspunchthroughtheinsulationso
flat washerand brassnutcan beinstalled,Tightendownnutssnuglycompressingthe insulationto forma goodsealaroundthecleen-outopening,
4-This boileris suitablefor useon combustibleflooring,providedthe boileris not set on carpetand a metaldrip panis placedunderthe appliance.
INSTALLATIONOF SIDECLEAN-OUTCOVERPLATES
5/16 UNC X 1 3/4" L(3.
Figure1

D-SWINGDOORANDOBSERVATIONCOVERASSEMBLY
1- Removeburnermountingplateincludingright side mountingstuds for burnermountingplate(do not removeleft side studs)
2 - Collectthe SwingDoorCarton(90924)containingthehinge assemblyandhardware.
3 - InstallInternalHingeP/NEC1021(Item6, Fig,4) to frontsectionof boilerwith(2)5/16-18UNCx 3/4"hex headcapscrewsand5/16"flatwashers(do
netuse the 11/4" long screws).
4 - InstallExternalHingeP/NEC10122(Item7, Fig.4) to theoutside of theburnermountingplatewith(2) 5/16-18UNCx 11/4" hexheadcapscrews,flat
washers,and nuts.Thecapscrewsshouldbeinsertedthroughthe backof theburnermountingplate,thenthroughthe hinge.Do NOTtightenExternal
Hingescrewsat thistime.Thiswillallowfor alignmentof the plateonce it is placedin position.
5 - Hangburnermounting plate in position,then close to alignthe remainingthree (3) studson left side of section.Once alignmentis accomplished,
tightennutson ExternalHinge.DeNOTreinstallnuts!washerson left side studsuntil afterjacketinstallation.
6 - Removeobservationdoor (Item4, Fig.4) from insideburnermountingplate.Attachthe observationdoor to the outsideof the mountingplate.
7 - The remainingswingdoorcartonparts willbe usedin SectionH,Wiring.
E - JACKETASSEMBLY
1 - Referto Page4, Fig,4 forexplodedview.Attachthebackpanel(19)tobosseson middleof backsectionwithtwo 1/4"x3/8"trussheadmachinescrews
(20) provided.The backpanel hastwo shG"diameterholesclose to the centerof thepanel.
2 - Lift off theburnermountingplate.Placeeerafeltliner (28)on floorof boilerin frontof targetwall.
3 - Removethe (2)knock-outsin thefrontjacketpanel(23)whichallowclearancefor thehinge. Placethefrontjacketpanelonthe blockand replacethe
burnermountingplate.
4 - Attach rightside jacketpanel (22)to the frontandbackpanelswithsheetmetal screws,
NOTE:ON SERIESECTBOILERS,THEOPTIONALWATERHEATER(17) MUSTBEINSTALLEDINLARGEOPENINGIN BACKSECTION
BEFORETHE LEFTSIDE JACKETPANELSARE ATTACHED.
5 - If water heateris used, removeknockout piecesin upperleft side jacketpanel(21)and backjacketpanel(19) beforeinstalling.Attach leftside jacket
panelsin thesame manneras the rightside panel.
6 - Attachthetop panel.Thetop is madeintwopieces(26& 27).Join thetwo piecestogetherwithsheetmetalscrews.Securetoppaneltofrontand back
panelwithsheet metalscrews.
7 - Install waterheater(13)whenrequired,in largeopeninginfrontof boiler.SeeFigure3A or3B forsuggestedpiping.Whenwaterheateris notemployed,
coverthe heateropeningwithcover plate(12)or (16).
BESURERUBBERGASKETIS IN PLACEBETWEENCOVERPLATEORWATERHEATERPLATEANDBOILERSECTION.

Figure2
HIGH TEMPERATUFE
HOT
MIXED
WATER
MIXER
COLD
INLET
HEATER
7lAPPING
CONTROL
3/4" OOfl'rROL -- I_" MIN.
Figure3A Figure3B
MaximumTanklessWaterHeaterRatings
*Capacity
HeaterNo. G.F_M.
X-1020 5 FurUse inSeriesEC
X-t082 4 ForUse inSeriesECT
*Waterheater ratingsarebasedon intermittentdemand- 40°F.to 140° E with200° F.BoilerWaterTemperature.
DANGER:Installanti-scalddeviceinhotwatersupplypiping.Watertemperatureovert25°F cancausesevereburnsinstantlyordeathfromscalds.

27
_26
-N
._h c
J_h
F4

ItemNo.
1
SERIESECand ECT
Part No.
EC-1001
EC-1001-1
X-1096
X-!096-1
EC-10O2
EC-1OO2-1
X-1097
X-1097-1
X-3019
X-1060
X-1031
X-1061
EC-1021
EC-1022
Description
BlockAssembly-EC-03
BlockAssembly- EC-04
BlockAssembly- EC-05
BlockAssembly- EC-06
BlockAssembly- ECT-03
BlockAssembly- ECT-04
BlockAssembly- ECT-05
BlockAssembly- ECT-06
TargetWall
BurnerMountingPlate
ObservationDoor
5/16"-18x 2-1/4" Studsw/Nuts- 5 Req'd
SwingOutBurnerMountingPlateHinge- Internal
SwingOutBurnerMountingPlateHinge- External
HighTemp.Rope3/8" Diameter.48" Long
HighTemp.Rope3/8" Diameter.56" Long
HighTemp.Rope3/8" Diameter.64" Long
HighTemp.Rope3/8" Diameter.72" Long
FlueCollector
FlueCollector
FlueCollector
FlueCollector
1/4"-20x 1-3/4" Studsw/Nuts- 2 Req'd
RubberGasket
CoverPlate
TanklassCoil(OptionalWaterOnly)
3/8"-16 x 3/4" HexHal.CapScrews- 6 Req'd
RubberGasket(ECT Models)
CoverPlate(OptionalECTModels)
TanklessHeater(OptionalECTModels)
3/8"-16 x 3/4" Hex Hd.CapScrews- 8 Req'd
BackJacketPanel
1/4"-20x 3/8"Truss Hd,Mach.Screws- Cad,Plate- 2 Req'd
UpperLeftSideJacketPanel
UpperLeftSideJacketPanel
UpperLeftSideJacketPanel
UpperLeftSideJacketPanel
EC/ECT-03
X
x
X
X
2 X x
3 X X
4 X X
5 X X
6 X X
7 X X
8 X
X
9 EC-50O0 X
EC-5000-1
EC-5000-2
EC-5000-3 X
10 X-5000 X X
11 X-1023 X X
12 X-1034 X X
13 X-1020 X X
14 X X
15 X-1083 X X
16 X-t084 X X
17 X-t082 X X
18 X X
19 EC-6003 X X
20 X X
21 EC-6007 X
EC-6007-1
EC-6007-2
EC-6007-3 X
ModelNo.
EC/ECT-04 EC/ECT.O5
X
X
X
X
X X
X x
X X
X X
X X
X X
X
X
X
X
X X
X X
X X
X X
X X
X X
X X
X X
X X
X X
X X
X
X
EC/ECT-06

ItemNo.
21A
SERIESECand ECT
Part No.
EC-6008
EC-6008-1
EC-6008-2
EC-6008-3
EC-6O02
EC-6002°1
EC-6002-2
EC-6002-3
EC-6000
Description
LowerLeftSideJacketPanel
LowerLeft SideJacketPanel
LowerLeft SideJacketPanel
LowerLeft SideJacketPanel
RightSideJacketPanel
RightSideJacketPenet
RightSideJacketPanel
RightSideJacketPanel
FrontJacketPanel
5/18"-18x 1-3/4" CarriageBoltw/Nuts
SideClean-OutCoverPlate
RightTopJacketPanel
RightTopJacketPanel
RightTopJacketPanel
RightTopJacketPanel
LeftTopJacketPanel
LeftTopJacketPanel
LeftTop JacketPanel
LeftTop JacketPanel
BaseLiner
BaseLiner
BaseLiner
BaseLiner
EC/ECT-03 EC/ECT-06
X
X
22 X
X
23 X X
24 X X
25 X-1085 X X
26 EC-6005 X
EC-6005-1
EC-6005-2
EC-6005-3 X
27 EC-6004 X
EC-6004-1
EC-6004-2
EC-6004-3 X
28 EC-3000 X
EC-3000-1
EC-3000-2
EC-30O0-3 X
ModelNo.
EC/ECTo04 EC/ECT-05
X
X
X
X
X X
X X
X X
X
X
X
X
X
X
E-PIPING
DONOTPIPEBOILERUNTILAFTERJACKETIS INSTALLED.
1- See Figures5 and 6 for suggestedpipingto the boiler.Also,seeHydronicsInstituteResidentialHydronicHeatingGuide2000.
2 - Makeup cold watersupplyconnectionto the boiler.
3 - Installpressuregaugeortemperature-pressuregaugein tappingprovided.See Figure9.
4 - Pluga!l open tappingsin the boilerandfill withwater.Applyapproximatelythirty(30) poundspressure.Checkto makecertainthatalljoints
and fittingsare water tight,
5-Afteralljointsand connectionshavebeenprovenwatertight,removecold watersupplyandplugsfromall tappingsthat areto beused.See Figure
9 for tappinglocations.
6-The returnpipingto the 1-1/4" NPT lowertappingonthe frontsectionmustbe installedin sucha mannerto assureproperclearanceof the oil
burnerand mountingplatewhenopeningandclosingthe burnermountingplate.Peerlesssuggestsusinga 1-1/4"90 degreestreetelbowat this
lowertappingin orderto positionthe returnpipingawayfromthe mountingplateassembly.
NOTE:IFTHISBOILERANDDISTRIBUTINGSYSTEMIS USEDiNCONJUNCTIONWITHA REFRIGERATIONSYSTEM,THECHILLEDMEDIUM
SHALLBE PIPEDIN PARALLELWITHTHE BOILERANDTHE PROPERVALVESAPPLIEDTO PREVENTTHECHILLEDMEDIUMFROM
ENTERINGTHE BOILER.WHENTHEBOILERIS CONNECTEDTOHEATINGCOILSLOCATEDINAIRHANDUNGUNITSWHERETHEY
MAYBE EXPOSEDTO REFRIGERATEDAIRCIRCULATION,THEBOILERPIPINGSYSTEMMUSTBE EQUIPPEDWITHFLOWCONTROL
VALVESOROTHERAUTOMATICMEANSTOPREVENTGRAVITYCIRCULATIONOFTHEBOILERWATERDURINGTHECOOLINGCYCLE.

I
\ i i
ERON[
ID
_ EQUALIZER
X
REAR
FRONT REAR
Boiler
Model
No, Risers Header Equalizer
EC/ECT-03-075 1-2" 11/4"
EC/ECT-03-1O0 1-2" 1V4"
EC/ECT-03-120 1-2" 1V4"
EC/ECT-04-125 2-2" 21/2', 11/2"
EC/ECT-04-150 2-2" 21/2", 11/2"
EC/ECT-04-175 2-2" 21/2" 11/2"
EC/ECT-05-175 2-2" 3" 11/2"
EC/ECT-05-200 2-2" 3" 11/2"
EC/ECT-05-250 2-2" 3" 11/2"
EC/ECT-06-275 2-2" 3" 1112"
EC/ECT-06-300 2-2" 3" 11/2"
Thereturnfrom systemshouldalwaysenterequalizerthrough
HartfordLoop,2" to 4" below normalwaterline (see dimensional
drawingfor normalwaterline).
STEAM
Figure5
Size thesupplyand returnconnectionsto suit thesystem.
Pipethe supplyand returninoneof two ways:
1) Pipethesupplyfromthetop of the rearsectionand
return to the bottomof thefrontsection.Use the 3/4"
tappinginthe topof thebacksectionfor air elimination.
2) As anacceptablealternative,pipethe supplyfromthe
topof thefrontsectionandreturnto the bottomof the
rearsection.Providean aireliminationmeanswithinthe
supplypiping.
HOTWATER
ALTERNATE
SUPPLY
FRONT
r
ALTERNATE
RETURN
REAR
Figure6
F-OILBURNERINSTALLATION
1-Theoilburneris suppliedwithamountingflangefixedinposition.
2-Mountthe burnerto theburnermountingplate(3) Figure4 withfour5/16" studsandnuts provided.
BE SUREHIGHTEMPGASKETIS BETWEENTHEBURNERMOUNTINGFLANGEANDTHE BURNERMOUNTINGPLATE.
3-Routethe oillinesto avoid interferencewhenopeningthe platefor boilerservicing.Useflexibleoillinesor copper.Whenusingflexibleoil lines,
providetubinglongenoughto allowthe plateto swingfreelyover its entirerange.When usingcopper,installflared copperdisconnectswithvalves.
4 - See Figure7 for Oil BurnerSpecifications.If exceeding100PSIpumppressureon burnersshownat 100 PSI, seechart on page 13to determine
therequiredreductionin nozzlesize.
7

WAYNE BURNER WITH 100 PSI PUMP PRESSURE
Boiler Burner Air Cone Nozzle Start-UpSettings
ModelNo, ModelNo, I,D, Size FlameLock Off-CycleDamp, Air Shutter
EC/ECT-03-075 HS 21/2" NoHoles .7580° A DEL 1 1.0 .50
EC/ECT-03-100 HS 21/2" NoHoles 1.0080" B DEL 1 1.2 1.50
EC/ECT-03-120 HS 21/2"NoHoles 1.2080° B DEL 11/2 1.5 1.75
EC/ECT-04-125 HS 21/2" 6 Holes 1.2580° B DEL 1 2.0 2.00
EC/ECT-04-150 HS 21/2" 6 Holes 1.5080° B DEL 3 2,0 2.25
EC/ECT-04-175 HS 21/2" 6 Holes 1.7580° B DEL 5 2,0 2.50
EC/ECT-05-175 HS 21/2" 6 Holes 1.7580° B DEL 5 2.0 2.50
EC/ECT-05-200 HS 21/2" 6 Holes 2.00 80° B DEL 5 2,0 3.50
EC/ECT-05-250 HS 21/2" 6 Holes 2.50 80° S DEL 8 2.0 5.00
EC/ECT-06-275 HS 3-5/16" Str.Bore 2.75 80° B DEL 2 2,0 4.00
EC/ECT-06-300 HS 3-5/16'` Str.Bore 3.00 80° B DEL 2 2.0 4.50
CARLIN BURNER
Boiler Burner Start-UpSettings
ModelNo. ModelNo. Air Shutter NozzleSize PumpPressure HeadDim.A Air Band
EC/ECT-04-125 *99FRD Blank 1.00x 70° B DEL 150 PSI 2 40%open
EC/ECT-04-150 *99FRD Blank 1.25x 60° B DEL 150 PSI 3 60%open
EC/ECT-04-175 *99FRD Blank 1,50x 60°B DEL 150 PSI 4 100%open
EC/ECT-05-175 *99FRD Open 1,50x 60° B HAGO 150 PSI 5 10%open
EC/ECT-05-200 *99FRD Open 1,65x 60° B HAGO 150 PSI 5 45%open
EC/ECT-05-250 *99FRD Open 2,00 x 60° B HAGO 150 PSI 8 100%open
EC/ECT-06-275 102CRD Open 2,75 x 60° B DEL 100 PSI 7 100%open
EC/ECT-06-300 102CRD Open 3,00 x 60° B DEL 100 PSI 9 100%open
*Model99FRDBurnerEquippedwithModel98022PSCMotor
CARLIN EZ-IHP OILBURNERWITHMODEL98022PSC MOTOR
Boiler Burner Start-UpSettings
ModelNo, FiringRate ModelNo, AirShutter NozzleSize PumpPressure AirBand HeadBar
EC/ECT-03-075 .75 EZ-1HP Blank 0.60 x70° B DEL 150 PSI 0.55 0.60- 0.65
EC/ECT-03-100 1.00 EZ-1HP Blank 0.85 x70°A DEL 150 PSI 0.65 0.85- 1.00
EC/ECT-03-120 1.20 EZ-1HP Blank 1.00 x70° A DEL 150 PSI 0.80 0,85- 1.00
BECKETTBURNERWITH140 PSI PUMPPRESSURE
Boiler Burner Burner Static Nozzle Start-UpSettings Head
ModelNo. ModelNo. Head Plate Size AirShutter AirBand Setting
AFG-LI* LI* 33/8" .6560" B HAGO 9.0 2 N/A
AFG-L1 L1 33/8" .8560° B HAGO 10.0 1 N/A
AFG-L1 L1 ** 1.0060° B HAGO 9.0 2 N/A
AFG-F6 F6 23/4" 1.1080°A DEL 5.0 1 N/A
AFG-F6 F6 23/4" 1.2580° BHAGO 8.0 1 N/A
AFG-F6 F6 23/4" 1.5080°B HAGO 10,0 3 N/A
AFG-MV1 M-V1-3 -- 1.5060° B HAGO 10.0 3 3
AFG-MV1 M-V1-3 -- 1.7560° B HAGO 10,0 93
AFG-MV1 M-V1-5 -- 2.00 45° B HAGO I 0.0 5 5
CF-375 L1-S -- 2.25 450P HAGO 10.0 6 2
CF-375 L1-S -- 2.50 45° P HAGO 10.0 6 3
EC/ECT-03-075
EC/ECT-03-100
EC/ECT-03-120
EC/ECT-04-125
EC/ECT-04-150
EC/ECT..04-175
EC/ECT..05-175
EC/ECT,.05-200
EC/ECT..05-250
EC/ECT..06-275
EC/ECT-06-300
* RequiresLowFiring RateBaffle ** Removestatic platefor 1.20GPHrate.
NOTE:Aboveair settingsare start-upsettingsonly -- final adjustmentsare to be madewithcombustiontest instruments.Adjustburnerfor
highestCO2 (Maximum13%)whilemaintaininga 0 smokeand -.01to -.02ovediredraft.
Figure7 (continuedon nextpage)
8

RIELLOSERIES40 OIL BURNER
Boiler Firing Burner Nozzle Pump Turbulator AirDamper
ModelNo. Rate ModelNo. Size Pressure Setting Setting
EC/ECT-03-075 .75 F5 .60600B DEL 155 .5 2.1
EC/ECT-03-100 1.00 F5 .8560° W DEL 145 2.0 2.6
EC/ECT-03-120 1.20 F5 1.00600W DEL 145 3.0 2.9
EC/ECT-04-125 1.25 F5 1.0O60° W DEL 155 2.5 3.4
EC/ECT-04-150 1.50 F10 1.2560°B DEL 145 1.5 3.1
EC/ECT-04-175 1.75 F10 1.3560° B DEL 165 2.0 2.5
EC/ECT-05-175 1.75 F10 1.3560° B DEL 165 2.0 2.5
EC/ECT-05-200 2.00 F10 1.5060oB DEL 170 2.5 2.8
EC/ECT-05-250 2.50 F10 2.00 60" B DEL 155 3.5 4.2
EC/ECT-06-275 2.75 F10 2.2560° B DEL 150 4.0 4.2
EC/ECT-06-300 3.00 F10 2.50 60° B DEL 145 4.5 4.2
NOTE:AboveTurbulatorand Air DamperSettingsare start-upsettingsonly-- finaladjustmentsmustbe madewithcombustiontest instruments.
Figure 7 (continued)
COVERPLATE 1 1/2_ 1
W/ WARNINGL
_2
BURNER
DISCONNECT BOX
BURNER
_LOWER LEFT
SIDE PANEL
Figure8
G-CONTROLS
1-Applycontrolsas follows:
a. Water Boilers:
installthe limitor operatingcontrol,temperature-pressuregaugeand safetyreliefvalve.See Figure9 for properlocation.
b. SteamBoilers,FloatLowWaterCut-Off:
installpressurelimitcontrol,pressuregauge,gaugeglasstrimand safetyvalve.See Figure9. For applicationof float lowwatercut-offsee
Figure9 andcontrolmanufacturersinstructionsheetshippedwiththe control.
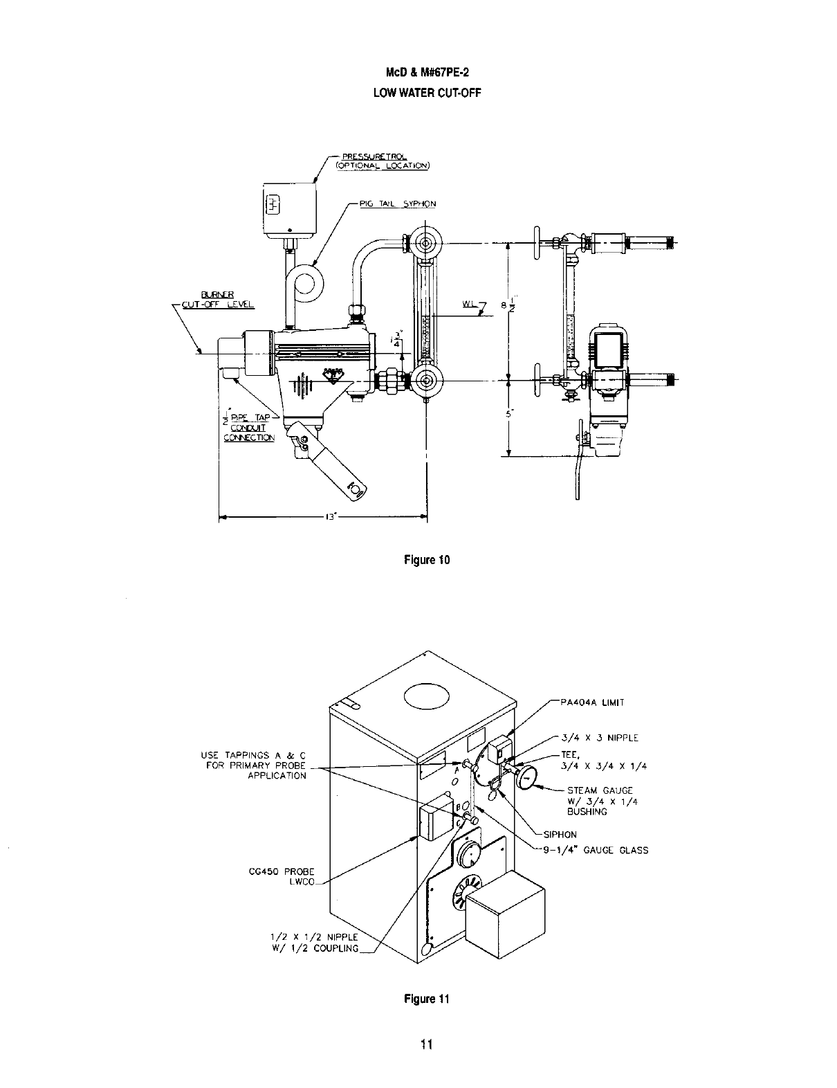
c. SteamBoilers,PrimaryProbeLowWaterCut-off:
Caution: Donotinstall a probelowwatercut-offin the boilerprimaryprobetappingunlessthe lowwatercut-offis equippedwitha timedon and
off feature.The cycledoff time willallowthe probelowwatercut-offto sensethe true waterlevelin the boilerandeliminatea false
readingcausedfromsensinga foamingorsurgingwatercondition.Failureto use a timedlowwatercut-offcouldresultin a failedheat
exchanger.
NOTE:Longergaugeglass androds arerequiredfor usewiththeoptionalCG450 PrimaryProbeLowWaterCut-off.Thegaugeglasscarton,22-
162-10,is providedwitha packagedboiler.Fora KDboilerthe longergaugeglasscartonis locatedin a specialProbeLowWaterCut-Off
Carton,90759.
Packaged Boilers:The CG450LWCO,andPA404Alimitare installedandwiredat the factory.The boiler miscellaneousparts carton,located
withintheboilercrate,containsthelongergaugeglasscarton22-162-10,GaugeValvesCarton20-105-03,fittingsandcomponents.
KD Boilers:A separatePrimaryProbeLowWaterCut-OffCarton,90759is required.ThiscartoncontainstheCG450LWCO,22-162-10longer
glass/rodscarton,3/4"x 3" nipple,3/4"x 3/4"x 1/4"tee, (2) 1/2"x2" nipplesand(2) Vz"couplings.Usethesecomponentsalongwiththosefrom
theSteamTrimCarton andinstallfittingsand controlsperFigure11.
NOTE:ThePA404Alimit andsiphonare not includedas part of a standardKDboilerofferingfor ECTmodelboilers.
Caution:Pipethe dischargeof thesafetyvalveorsafetyreliefvalveto preventinjuryin the eventof pressurerelief.Pipethedischargetoa drain.
Pipefull sizeof outlet.

1,3
fRONT
3/4" AIR
P_
REAR
(2)
SUPPLY
TANKLESS-
COIL
LOCATION
STEAM
fN
FLOOR
LINE
SIDE F_
,,C,,
COIL 42"
LOCATION
WATER ONLY
Figure9
Boiler
Model
EC/ECT-03
EC/ECT-04
EC/ECT-05
EC/ECT-06
Width
-A-
221/2"
22112"
221/2"
221/2"
Jacket
Depth
"B"
153/4"
191_16"
24118"
288h6"
DIMENSIONS
Length
Height FireBox
"C.... D"
42" 10"
42" 143h8"
42" 183/8"
42" 229/18"
Rearof
Jacketto _LFlue
"E"
83/4"
10;/8"
13"
151/18"
FlueOutlet
Diameter.
-F-
6"
7"
8"
9"
*Dimensionsare approximate.
DistanceBetween
¢t.Tappings*
"G"
91116"
131k"
17;/18"
215/e"
LOCATION
H
I
L
M
N
O
P
Q
R
S
T
TAPPINGLOCATIONS
SIZENPT
8/4"
3/4"
I/4"
1/2"
2"
8/4"
314"
11/4"
8/4"
11/2"
314-
WATER
N/A
LimitControl
Temperature-PressureGauge
WA
OptionalReturn
SecondaryProbeLowWaterCut-off
SafetyReliefValve
Return
DrainValve
OptionalHighLimit
N/A
STEAM
LowLimitControl
PressureGauge
LimitControl
GaugeGlass andLowWaterCut-off
Return
SecondaryprobeLow WaterCut-off
SafetyValve
N/A
DrainValve
Skim
PrimaryProbeLowWaterCut-off
10

McD& M#67PE-2
LOWWATERCUT-OFF
__;OPT'ONAL LCK_TI(]N)
13"
Figure10
LIMIT
USE TAPPINGS A & C
FOR PRIMARY
APPLICATION
,3 NIPPLE
GAUGE
w/ 3/4 x 1/4
BUSHING
CG450 PROBE
GAUGE GLASS
1/2 x 1/2
w/ 1/2 COUPLING
Figure11
11

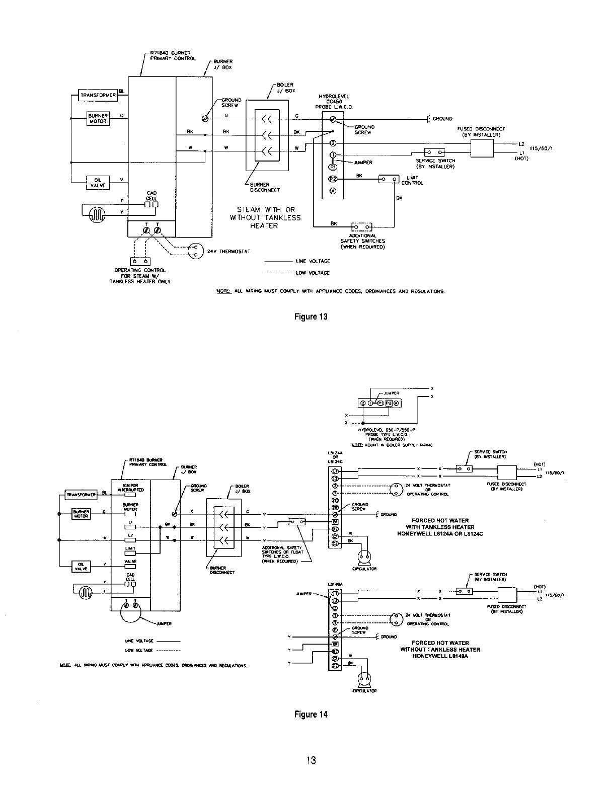
H-WIRING
1- Allelectricalwiring shallbedonein accordancewiththeNationalElectricalCodeand LocalRequirements,
2 - Locatejunctionbox in the swingdoor carton.Mountjunctionboxto theholes onthe left sideof jacket with(2) #10 x 1" sheet metalscrews.
3 - Locatethe polarized harness(es)in the swing doorcarton. If your cartonhas two polarizedharnesses,selectthe harnesswith malepins. Connect
harnessfromthejunction box to thelimit (waterboilers)or lowwatercutoff (steamboilers)usingfield-suppliedconduit.Seewiringdiagrams(Fig.12,
13& 14),junctionboxdetail (Fig.8), and photos(Fig.2 & cover).Theadditionalharnessis a duplicateof the harnessnow locatedin the burnercar-
ton and maybediscardedif usinga Peerlesssuppliedburner(harnessin burnercartonincludesconduit),
Warning:Improperinstallationof burnerharnesscan allowburnerto energizewithswingdooropen,creatinga severeburnhazardto boiler maintenance
personnel
4a- Locatethe polarizedburnerharnessinthe burnercarton.Attach harnessbetweenburnerandjunctionbox as shownin Figure8.
4b- If usinga non-Peerlesssuppliedburner,obtainappropriateburnerharnessfroma PeerlessDistributor,or hardwireburnersuchthatburnerswingdoor
cannotbe openedwithoutdisconnectingpower.
*Harnessfor Beckettor Carlin burner- 50233(polarized,21" longconduit)
*Harnessfor Rielloburner- 50234(polarized,28" longconduit)
5_ For completeinformationonservicingandadjustmentof controls,referto the attachedcontrolspecificationsheets.
NOTE:Single PoleSwitchesincludingthoseof SafetyControlsor ProtectiveDevicesshallnotbe wiredin a groundedline.
=
Y
OPERATING CON TROt
FOR STEAM W/
TANKLZSS HZATI_R (3NLY
RT184B BURNER
PRIMARy CON]_ BURNER
J/ BOX
IGNITOR I
INTERRUP'ilED
r--GROUNO
BUI_CR SCREW
ABK _1 BK
MOTOR G
L2 W W
UMIT
STEAM WITH OR
Iwo.o T =.ESS
i i "", "------_ 24 V mfZRMOSTAT
-- LINE V(_.TAG/Z
............... LOW V04_TAG_
ALL Y_IRING MUST COMPLY WI1_ APPLIANCE C00ES, (_OINANC[S AN{) R[GULAT]0NS.
GROUND
BK
ADDITIONAL
LIMIT SAFETy S_ TC,HES
CONTROL (WHEN REQUIRED)
_ _BK BK r¸ --:_
67 FLOAT TYPE
LWCO
SER_ICE SV_ITCH
(BY INSTALLER)
x <_OT)
--x--x L2 _15/60/I
FUSED DISCONNECT
(BY INSTALLER)
HYOROLIEVEL 650-p/550-p
PROBE TYPE LWC0
(_EN REQU}RED)
Figure12
12

ALL I_RING MUST CCMPLy I_TH APPLIANC_ C0(_S, 0JROINANCES AND REGULATION S
Figure13
J_P_ x
H_0LE_L 6_O-P/5_-P
p,R_ ,_o E t.w¢. 0
LS_A __C_ S_eTC_
(BY "VSt;_£_)
•R71S_g g_l_(R LeI_ c
_ ,, _ _,_
LIJ ] J J _--_-._I _ FORCED HOT WATER
I[I _ e_< _i_ ij__: \ eK y_ ='-----,_-.... _ WITH TANKLESS HEATER
_j •(_._ HONEYWELL L812AA OR L8124C
]Le_ (ROT)
u_[ _.t_ -- r--- _FORCED HOT WATER
LO_ "_.t_ .......... v_ _WITHOUT TANKL ESS HEATER
Figure14
13

I-CLEANINGHEATINGSURFACES
NOTE:CLEAN BOILERATLEASTONCEPERYEAR.CLEAN BOILERFROMTHELEFTSIDE ORFROMTHETOE
TO CLEAN:
1-Turnoff all electricalpowerto the boiler.Disconnectoilburnerwiringharness.
2a - If cleaningfrom theside, removeleft jacketpaneland sidecleanoutcoverplates.
2b - If cleaningfrom thetop, removeflue pipe,leff topjacket pane_andflue collector.
3 - Brushthe fluepassageswitha wire brush to removeall scaleor soot.
4 - Removescale andsootfrom combustionchamberby vacuumcleaningor any other means.
NOTE:BURNERMOUNTINGPLATEMUST BE REMOVEDOR SWUNGOPENTO FACILITATETHISOPERATION.TARGETWALL IS MADEOF
SOFTCERAMICFIBER.DO NOTDAMAGETHIS MATERIALDURINGBRUSHINGANDVACUUMCLEANING.
5 - Install clean-outcover platesor flue collector.Inspectclean-outcover plate insulation,flue collectorgasket, or rope seal Replaceany piecesnot
forminga gastightseal.
6 - Installjacketpanelsandfluepipeas required.
J-CLEANINGTHESERIESECSTEAMBOILERWITH SKIMTAPPING
Thefollowingcleaningprocedureshaftbe performedbya qualifiedserviceperson.Referto Figure9 for locationof skimtapping.
1 - Clean the boileras describedbelownolaterthan one weekafterthe initialstart up.Cleaningwill be moreeffectiveifthe boileroperatesa dayor
two to loosensedimentand impuritiesin the system.
2 -The boilermust becleanedto removeany accumulationof oil, grease,sludge,etc.that maybe inthe system.Thesesubstancescancause
foamingand surgingof the boilerwater,producingan unstablewaterline andwatercarryoverto the system.
WARNING:CLEANINGTHEBOILERREQUIRESTHEUSEOFVERYHOTWATERAND CORROSIVECHEMICALS.USECAREWHEN
HANDLINGTO PREVENTINJURY,
3 - Connecta 11/2"pipe nippleand shutoff valveto skimtapping.
4 - Connecta 11/2"drain line offofthe skimvalve,run to a pointof safedischarge.
5 - Close allvalvesto thesystem.Providea meansof continuousfreshwaterto the boilerfor thecleaningprocess.
6 - Open the skimvalve.Fiflthe boileruntilwater beginsto flowout of the valve.Shutoff fill valve.
7 - Usecommonwashingsoda(suchas Arm and HammerSuperWashingSoda).Mix thesodawithwater in a 10quart pail andpourintotheboiler
throughthe safetyvalvetapping.Mix a proportionof one (1) poundof washingsodaforeach800 squarefeetEDR netboiterrating.
CAUTION:DONOTLEAVETHEBOILERUNATTENDEDWHILEFIRING.TAKEGREATCARENOTTOALLOWTHEWATERLEVELTODROP
BELOWTHE BOTTOMOFTHEGAUGEGLASSORTOALLOWFRESHWATERMAKEUPTOFLOWINTOO FAST.THISWILL
AVOIDTHEPOSSIBILITYOFCAUSINGTHE BOILERSECTIONSTOFRACTURE.
8-Turn burneron and allowtheboilerwater to heat upto just belowsteaming(180 to 200 degreesF).Cycle theburnerto maintaintemperature
duringskimming.Do notallowthe boilerto steam.Steamingmixesupthecontaminantsinthe waterinsteadof floatingthem at the surface.
9 - Openthe make-upwater valveto continuouslyfeed waterto the boiler.Allow waterto flow outof theskimtapping.
10- Continueskimmingtheboiler untilthewater flowingfromtheskim tappingflowsclear.Thiswill takesometime,possiblyseveralhoursfor a dirty
system.
11- Afterskimmingis complete,closetheskim valveandturn off the boiler.
12- Close themake-upwatervalveand openthe boilerdrain valve.
13- Drainthe boilercompletely.Refilland drainagainone or two timesto makesure allof the sodahasbeen washedout.
14 - Restorepipingto normal.Pipe a nippleandcap inthe skimvalve.
15- NOTE:If thegaugeglass becomesdirtyagain,this indicatesmorecontaminantshaveworkedlooseinthe system.Repeatthecleaningand
skimmingprocessas neededto clean the system.
14

(1)
Boiler
ModelNo,
EC/ECT-03-075
EC/ECT-03-100
EC/ECT-03-120
EC/ECT-04-125
EC/ECT-04-150
EC/ECT-04-175
EC/ECT-05-175
EC/ECT-05-200
EC/ECT-05-250
EC/ECT-06-275
EC/ECT-06-300
(2)
a)HeatingCapacityBTU/Hr.
b)GrossOutput
Water Steam
a 92,000 a 91,000
a 121,000 a120,000
a 144,008 a 142,000
a152,000 a151,000
a181,000 a180,000
a 209,000 a 208,000
a 214,000 a 212,000
a 241,000 a 240,000
b 286,000 b 286,000
b 321,000 b 321,000
b 347,000 b 347,000
SERIESECAND ECTRATINGS
(3)
NetI-8-RRatings
BTU/H_ Steam BTU/Hr.
Steam Sq.Ft. Water
68,000 283 80,000
90,000 375 105,000
107,000 446 125,000
113,000 471 132,000
135,000 563 157,000
156,000 650 182,000
159,000 663 186,000
180,000 750 210,000
215,000 896 249,000
241,000 1004 279,000
261,000 1083 302,000
(4)
I-B-R
Firing
RateG.P.H.
.75
1.00
1.20
1.25
1.50
1.75
1.75
2.00
2.50
2.75
3.00
Chimney
Size Height
inches Feet
8x8 20
8x8 20
8x8 20
8x8 20
8x8 20
8x8 20
8x8 20
8x8 20
8x12 20
8x12 20
8x12 20
Minimum
Draft
Required
inStack
,03"
,04"
.05"
.03"
,04 "t
,05"
,03"
.04 _r
,05"
.04 _
.05"
(1) BoilerModelNo.mayhavethe followingsuffixletters:
W-Water P-Packaged
S-Steam C-Circulator
Uq3oiler-BurnerUnit (Unassembled) T-TanklessCoil
(2a)HeatingCapacityBTU/Hr.basedon D.O.E.testingprocedureat t3.0% CO_,and -.02" watercolumndraftin firebox.
(2b)GrossOutputBTU/Hr.basedon 12.5%CO=,and -.02" watercolumndraft infirebox.
(3) Net I=B=RRatingsbasedontheTestingand RatingStandardfor Cast Iron andSteelHeatingBoilersofThe HydronicsInstituteDivisionof GAMA.
The Net I=B=RRatingsshownincludeallowancefor normalpipingandpick-upload.
The water ratingsare basedona pipingandpick-upaltowancefactorof 1.15, steamratingsarebased ona!lowanceof 1.333.
The PeerlessHeaterCompanyshouldbe consultedbeforeselectinga boilerfor gravityhot waterinstallationsandinstallationshavingunusualpiping
and pick-uprequirementssuchas exposedpiping,nightshut-down,etc.
(4) Firing rateis basedon a fuel oil with a heatingvalueof 140,000BTUper gallon.Burnerinput based on maximumaltitudeof 2,000ft. - for other
altitudesconsultfactory.
ADVERSEFUELCONDITIONS
If an adversefuel conditionsuchas cold oilexists,it maybe
necessaryto increasethe pumppressureto the nozzle.Coldoil is much
harderto atomizeat 100psicomparedto roomtemperatureoil.Tothe
right is a chart giving flowrates of standardnozzlesizesat 120psi and
140psi pumppressure.
NOTE:If itwasnecessarytoincreasethepumppressureabovethe
standard100psi, to eliminateany confusionfor the nextrou-
tine servicinga tag mustbe placedon theburnerindicating
pumppressureand nozzlesize used.
NozzleRating Approx.NozzleRatesGPH
At 100 PSI 120 PSI 140 PSI
.50 .55 .59
.65 .71 .77
.75 .82 .89
.85 .93 1.00
.90 .99 1.07
1.00 1.10 1.18
1.10 1.21 1.30
1.20 1.31 1.41
1.25 1.37 1.48
1.35 1.48 1.60
1.50 1.64 1.78
1.65 1.81 1.95
1.75 1.92 2.07
2.00 2.19 2.37
2.25 2.47 2.66
2.50 2.74 2.96
2.75 3.00 3.24
15

Series EC/ECT
OH Boilers
Installation,
Operation b
Maintenance
Manual
TO THE INSTALLER:
This manual is the property of the owner and must
be affixed near the boiler for future reference.
TO THE OWNER:
This boiler should be inspected annually by a
Qualified Service Agency.
HI Division ASME
of 9area
PEERLESS ®
CAST IRON BOILERS
PEERLESS HEATER COMPANY
231 NORTH WALNUT STREET •BOYERTOWN, PA 19512-1021 •PHONE 610-367-2153
www.peerless-heater.com
THE PREFERRED HEATING CHOICE
©2002 Peerless Heater Company ECS00O R15 (11/02÷5M)
Printed in U,S,A,