Microsoft GE1LU532SS Drawing X
2016-10-06
: Pdf 1000301326-Tech 1000301326-Tech B5 unilog
Open the PDF directly: View PDF
.
Page Count: 1

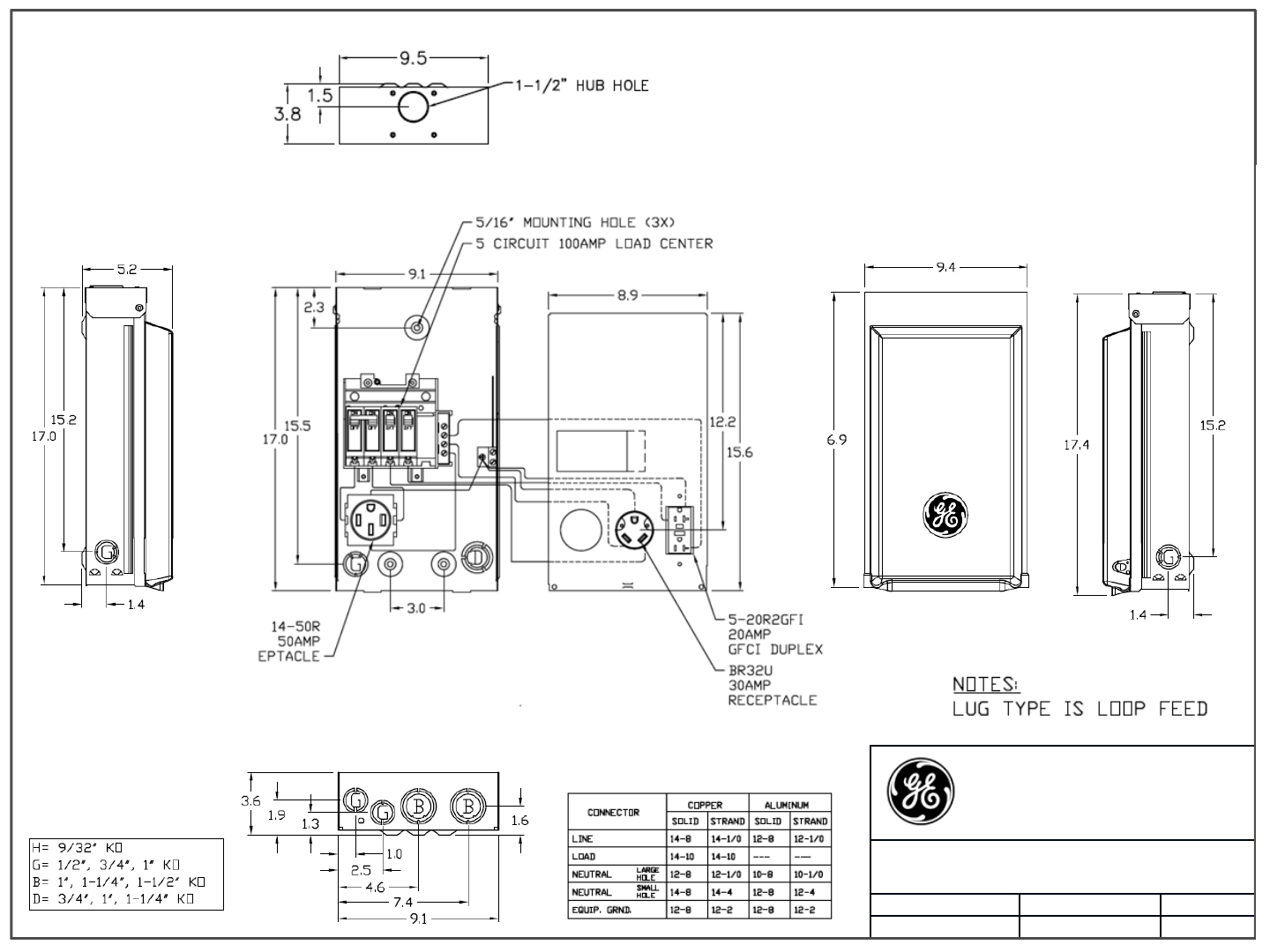
GE RV EQUIP–100A–MLO–UNMETERED–50A,30A&20A
RECEPT-SURFACE-UNLIGHTED-SINGLE SIDED-G90-N3R
CAT NO DWG DATE REV #
GE1LU532SS 05/13/2016 01
Front View
Interior
Front View
External Covers
Front
Exterior View
Right Side
View
imagination at work
Wire Range Size
Top View
Bottom View
Knockouts
Left Side
View