Installation Directions
2016-09-04
: Pdf 1000369864-Installationsheet 1000369864-InstallationSheet B4 unilog
Open the PDF directly: View PDF
.
Page Count: 16

PS/RS-F Model
Modèle PS/RS-F
Modelo PS/RS
Outdoor Motion Sensor
INSTALLATION INSTRUCTIONS
Détecteur de mouvements
pour l’extérieur
DIRECTIVES
Sensor de Ocupación
para Exteriores
INSTRUCCIONES DE INSTALACION
PK-92980-10-02-2DPK-92980-10-02-2D
Para Asistencia Técnica llame al:
1-800-824-3005 (Sólo en EE.UU.)
www.leviton.com
30
GARANTIA LEVITON POR DOS ANOS LIMITADA
Leviton garantiza al consumidor original de sus productos y no para benecio de
nadie más que este producto en el momento de su venta por Leviton, está libre de
defectos en materiales o fabricación por un período de dos años desde la fecha de la
compra original. La única obligación de Leviton es corregir tales defectos ya sea con
reparación o reemplazo, como opción, si dentro de tal período de dos años el producto
pagado se devuelve, con la prueba de compra fechada y la descripción del problema
a Leviton Manufacturing Co., Inc., Att.: Quality Assurance Department, 201 North
Service Road, Melville, New York 11747, U.S.A. Esta garantía excluye y renuncia
toda responsabilidad de mano de obra por remover o reinstalar este producto. Esta
garantía es inválida si este producto es instalado inapropiadamente o en un ambiente
inadecuado, sobrecargado, mal usado, abierto, abusado o alterado en cualquier manera
o no es usado bajo condiciones de operación normal o no conforme con las etiquetas o
instrucciones. No hay otras garantías implicadas de cualquier otro tipo, incluyendo
mercadotecnia y propiedad para un propósito en particular pero si alguna garantía
implicada se requiere por la jurisdicción pertinente, la duración de cualquiera garantía
implicada, incluyendo mercadotecnia y propiedad para un propósito en particular, es
limitada a dos años. Leviton no es responsable por daños incidentales, indirectos,
especiales o consecuentes, incluyendo sin limitación, daños a, o pérdida de uso
de, cualquier equipo, pérdida de ventas o ganancias o retraso o falla para llevar
a cabo la obligación de esta garantía. Los remedios provistos aquí son remedios
exclusivos para esta garantía, ya sea basado en contrato, agravio o de otra manera.
© 2010 Leviton Mfg. Co., Inc.

Diagrama de Cableado 4 - Cat. Nos. RS110-F,
PS110-F y PS200-F
Fase
Neutro
Fase
Fase
Fase
Blanco
Carga
Carga
Sensor
Neutro
Neutro
Cables
p/Portalamparas
Cables
p/Portalamparas
Interruptor
Línea
29
Función # Cat. Color del conductor
Fase PSxxx-1 Negro
PSxxx-7
Neutro PSxxx-1 Blanco
PSxxx-7
Carga PSxxx-1 Azul
PSxxx-7

1
Table of Contents
SECTION PAGE
FEATURES ...................................................................2
RATINGS ......................................................................2
DESCRIPTION .............................................................2
INSTALLATION INSTRUCTIONS ................................4
ADJUSTMENT AND OPERATION ...............................5
TROUBLESHOOTING GUIDE .....................................7
FRANÇAIS .................................................................10
ESPANOL ...................................................................20
List of Figures
SECTION PAGE
Figure 1 - Field-of-View (Horizontal) .............................3
Figure 2 - Field-of-View (Vertical) .................................3
Figure 3 - Mounting Position.........................................5
Figure 4 - Dial Positions ...............................................6
Wiring Diagrams ...........................................................8
English
Fase Fase
Fase
Neutro
Neutro
Neutro
Carga
Carga
Carga
Línea
Sensor
Neutro
Fase
Fase
Fase
Sensor
Cables
p/Portalamparas
Cables
p/Portalamparas
Línea
Fase
Carga
Carga
Sensor
Neutro
Neutro
Neutro
Cables
p/Portalamparas
Cables
p/Portalamparas
Fase Fase
Fase
Neutro
Neutro
Neutro
Carga
Carga
Carga
Sensor
Interruptor
Línea
Diagrama de Cableado 1 - Nos. de Cat. RS110-0,
PS110-0 y PS200-0
Diagrama de Cableado 2 - Nos. de Cat. RS110-F,
PS110-F y PS200-F
Diagrama de Cableado 3 - Nos. de Cat. RS110-0,
PS110-0 y PS200-0
28

2
FEATURES
• Fully adjustable eld-of-view up to a maximum of 200° (PS200) or 110°
(PS110/RS110) using external blinders
• Sensitivity, light and time adjustable (PS110/PS200)
• Sensitivity and time adjustable (RS110)
• Surge suppressor, RFI immunity and temperature compensation
(PS110/PS200)
• Water-resistant housing
RATINGS
DESCRIPTION
The Leviton family of Outdoor Motion Sensors consists of three models, each
of which employ infrared sensing technology and have detection sensitivity and
load “ON” time adjustments. All three models are capable of three modes of
operation when they are powered through a switch; Automatic (normal), Test
and Continuous (lights always ON). If they are directly wired to power without
a switch, they will only operate in the Automatic mode. These Outdoor Motion
Sensors are designed to be mounted at a height of 8 to 10 feet and have similar
maximum ranges, although the detection pattern and eld-of-view varies with
regard to the model number. Each Sensor has a sensor and switch incorporated
into one unit, and is installed as part of a lighting circuit. It will turn light xture(s)
ON when it senses movement of a heat-emitting body in its eld-of-view. It will
also turn the same xture(s) OFF from a user-determined time interval after
motion stops in the eld-of-view.
Leviton Cat. No. RS110, provides basic dusk to dawn operation. It has a eld-of-
view 110° and a maximum detection range of 50 feet when the Sensor head is
mounted at a height of 10 feet.
Leviton Cat. No. PS110, provides temperature compensated 110° coverage at a
range of up to 50 feet when the Sensor is mounted at a height of 10 feet. The unit
provides surge suppression and RFI immunity. It also has an ambient light level
adjustment which allows for operation under a wide range of lighting conditions.
Leviton Cat. No. PS200, provides temperature compensated 200° coverage at a
range of up to 50 feet when the Sensor is mounted at a height of 10 feet. The unit
provides surge suppression and RFI immunity. It also has an ambient light level
adjustment which allows for operation under a wide range of lighting conditions.
- Asegure que el voltaje de línea no esté por debajo de 100VCA (para
productos de 120VCA) debido a la operación de un artefacto grande en
el circuito.
• La luz se ENCIENDE en las tormentas
- Lluvia, nieve y vientos fuertes pueden crear cambios en la temperatura
que hagan disparar el Sensor. Los falsos disparos se pueden minimizar
instalando el sensor en un lugar protegido y también bajando el control
de sensibilidad.
Para información adicional llame a la línea del Departamento Técnico de
Leviton.
27
SÓLO PARA MÉXICO
POLIZA DE GARANTIA: LEVITON S. de R.L. de C. V., LAGO TANA NO. 43 COL.
HUICHAPAN, DEL. M. HIDALGO MÉXICO D. F., MÉXICO. CP 11290 Tel (55) 5082-1040.
Garantiza este producto por el término de un año en todas sus partes y mano de obra
contra cualquier defecto de fabricación y funcionamiento a partir de la fecha de entrega o
instalación del producto bajo las siguientes CONDICIONES:
1. Para hacer efectiva esta garantía, no podrán exigirse mayores requisitos que la
presentación de esta póliza junto con el producto en el lugar donde fue adquirido en
cualquiera de los centros de servicio que se indican a continuación.
2. La empresa se compromete a reemplazar o cambiar el producto defectuoso sin
ningún cargo para el consumidor, los gastos de transportación que se deriven de su
cumplimiento serán cubiertos por: LEVITON, S. de R.L. de C.V.
3. El tiempo de reemplazo en ningún caso será mayor a 30 días contados a partir de la
recepción del producto en cualquiera de los sitios en donde pueda hacerse efectiva la
garantía.
4. Cuando se requiera hacer efectiva la garantía mediante el reemplazo del producto, esto
se podrá llevar a cabo en: LEVITON, S. de R.L. de C.V.
5. Esta garantía no es válida en los siguientes casos: A) Cuando el producto ha sido
utilizado en condiciones distintas a las normales. B) Cuando el producto no ha sido
operado de acuerdo con el instructivo de uso en idioma español proporcionado. C)
Cuando el producto ha sido alterado o reparado por personas no autorizadas por
LEVITON, S. de R.L. de C.V.
6. El consumidor podrá solicitar que se haga efectiva la garantía ante la propia casa
comercial donde adquirió el producto.
7. En caso de que la presente garantía se extraviara el consumidor puede recurrir a su
proveedor para que se le expida otra póliza de garantía previa presentación de la nota
de compra o factura respectiva.
DATOS DEL USUARIO
NOMBRE: DIRECCION:
COL: C.P.
CIUDAD:
ESTADO:
TELEFONO:
DATOS DE LA TIENDA O VENDEDOR
RAZON SOCIAL:
PRODUCTO:
MARCA: MODELO:
NO DE SERIE:
NO. DEL DISTRIBUIDOR:
DIRECCION:
COL: C.P.
CIUDAD:
ESTADO:
TELEFONO:
FECHA DE VENTA:
FECHA DE ENTREGA O INSTALACION:
Cat # Voltage Load Type
Power
Consuption
Max
Load
Current
Max
Load
Watts
PS110-1
PS200-1
120VAC
60Hz
Incandescent 4W 8.34A 1,000W
Ballast 4.17A 500W
PS110-7
PS200-7
277VAC
60Hz
Incandescent 9W 7.00A 2,000W
Ballast 5.00A 1,385VA
PS110-7
PS200-7
230VAC
50/60Hz
Incandescent 8W 8.70A 2,000W
Ballast 5.00A 1,150VA
RS110-1 120VAC
60Hz Incandescent 4W 4.17A 500W

3
The Outdoor Motion Sensor is designed for outdoor use, but may be used
indoors also. It is ideally suited for mounting on outdoor walls utilizing a NEMA
rectangular weather-resistant box.
Cat. Nos. RS110, PS110 and PS200 are UL listed, CSA certied and conform
to California Title 24 requirements.
Figure 1 - Field-of-View (Horizontal)
50 feet
0 ft. 110˚
10 ft.
20 ft.
30 ft.
40 ft.
50 ft.
50 ft.
40 ft.
30 ft.
20 ft.
10 ft.
50 feet
0 ft. 200˚
10 ft.
20 ft.
30 ft.
40 ft.
50 ft.
50 ft.
40 ft.
30 ft.
20 ft.
10 ft.
50 ft.
MAX.
40 ft.
MAX.
0 ft.
10 ft.
(Cat. Nos. RS110 and PS110) (Cat. No. PS200)
Figure 2 - Field-of-View (Vertical)
Ajuste Manual (si es necesario):
Para APAGAR las luces, mueva el interruptor a la posición APAGADO.
Para una operación Automática, ENCIENDA el interruptor después de
30 segundos. La unidad está ahora en el modo de PRUEBA DE CAMINATA.
Para evitar el modo de PRUEBA DE CAMINATA de 5 minutos, cambie el
interruptor manual de encendido a apagado. Esto le dará un ciclo de energia
al sensor y lo colocará el sensor en el modo Automático.
Para mantener las luces ENCENDIDAS, mueva el interruptor a APAGADO
y ENCENDIDO 2 veces en un período de 2 a 3 segundos. Para regresar al
modo automático, mueva el interruptor a APAGADO y ENCENDIDO una vez.
Sólo para el modelo PS110 y PS200:
Ajuste al nivel de luz de ambiente: El Nivel de Luz de Ambiente, es la
cantidad de luz presente. Este ajuste determina a qué nivel de luz de ambiente
el Sensor se ENCENDERA cuando detecte movimiento.
Fije el Disco de Luz al intervalo que desee. Girando el disco totalmente hacia
la izquierda ja el nivel de luz al mínimo de 5 LUX. Girando el disco totalmente
hacia la derecha ja el nivel de luz al máximo de 1000 LUX.
Compensación de Temperatura: Estos modelos tienen un compensador
de temperatura incorporado. Este compensador automáticamente ajusta la
sensibilidad (alta o baja) dependiendo de la temperatura del ambiente exterior.
GUIA DE SOLUCION DE PROBLEMAS
NOTA: Cada sensor está fabricado usando un procedimiento de control de
calidad estricto y pruebas rigurosas antes de salir de la fábrica. Si la unidad no
trabaja correctamente, siga los siguientes pasos para determinar la causa.
• Las luces no ENCIENDEN
- Verique que la energía esté ENCENDIDA en interruptor de circuitos o
fusible.
- Asegure que los focos y tubos estén buenos.
- Asegure que el cableado esté correcto de acuerdo a los Diagramas de
Cableado.
- Asegure que el Sensor esté apuntando apropiadamente.
- Asegure que el lente esté limpio y sin obstrucciones.
- Asegure que el interruptor de la unidad esté ENCENDIDO.
• Las luces se ENCIENDEN y APAGAN demasiado rápido
- Asegure que ninguna fuente de calor (tal como lámparas o ventanas)
estén demasiado cerca al Sensor.
- Asegure que la luz no se esté reejando hacia el Sensor en supercies
blancas o que reejen.
- El sensor puede ser más sensitivo en invierno que en verano, debido
al contraste fuerte de los rayos infrarrojos.
• Las luces no se APAGAN
- Verique que el tiempo de demora esté jado en lo mínimo.
- Asegure que la unidad esté montada rmemente en una supercie
estable que no se mueva con el viento.
- Asegure que el Sensor no esté apuntando a movimiento de las ramas
de los árboles, masa de agua, aire acondicionado o vientos de estufa.
- Asegure que la unidad no esté en el modo de ajuste manual. APAGUE
la unidad por 5 segundos y luego la ENCIENDE.
- Si hay un interruptor en el circuito, asegure que esté en la posición
apropiada.
26

4
INSTALLATION INSTRUCTIONS
WARNING: TO BE INSTALLED AND/OR USED IN ACCORDANCE WITH
APPROPRIATE ELECTRICAL CODES AND REGULATIONS.
WARNING: IF YOU ARE NOT SURE ABOUT ANY PART OF THESE
INSTRUCTIONS, CONSULT A QUALIFIED ELECTRICIAN.
WARNING: TO AVOID OVERHEATING AND POSSIBLE DAMAGE TO THIS
DEVICE AND OTHER EQUIPMENT, DO NOT INSTALL TO CONTROL A
RECEPTACLE, A MOTOR- OR A TRANSFORMER-OPERATED APPLIANCE
OTHER THAN APPROPRIATE LOW-VOLTAGE OR FLUORESCENT
LIGHTING.
WARNING: ALTHOUGH WEATHER-RESISTANT, THE SENSOR SHOULD
NOT BE EXPOSED TO DIRECT PRECIPITATION OR ROOF RUNOFF
SINCE PROLONGED EXPOSURE MAY DAMAGE THE DEVICE.
OTHER CAUTIONS AND NOTES:
1. DISCONNECT POWER WHEN SERVICING FIXTURE OR CHANGING
BULBS.
2. USE THIS DEVICE WITH COPPER OR COPPER CLAD WIRE ONLY.
WITH ALUMINUM WIRE USE DEVICES MARKED CO/ALR OR CU/AL
ONLY.
3. MOUNT ON STABLE SURFACE AND NOT ABOVE LAMPS OR NEAR AIR
VENTS.
4. DO NOT AIM SENSOR INTO DIRECT SUNLIGHT OR REFLECTED LIGHT
FROM BRIGHT SURFACES.
TO INSTALL:
1. WARNING: TO AVOID FIRE, SHOCK, OR DEATH: TURN OFF POWER
AT CIRCUIT BREAKER OR FUSE AND TEST THAT THE POWER IS OFF
BEFORE WIRING.
2A. For Installations if there is an existing switch to the lighting
xture and NO Manual Override Switch is desired (refer to WIRING
DIAGRAMS 1 & 2): Remove the switch from its wall box and disconnect
the leads from the terminal screws. Twist the exposed ends tightly
together and screw on wire connector making sure that no bare wire
shows below the connector. Secure the wire connector with electrical
tape. Cover the wall box with a blank wallplate.
2B. For Installations if a Manual Override Switch is desired (refer to
WIRING DIAGRAMS 3 & 4): In a retrot application there may be an
existing switch to the LOAD(S). By leaving this switch in the circuit, it is
possible to shut OFF power to both the Sensor and the LOAD, if desired.
Choose the proper switch location.
3. Choose the proper Sensor location. Install a NEMA rectangular weather-
resistant xture tting at the Sensor location.
4. Screw the threaded nipple on the Sensor arm into the center hole on the
mounting plate.
AJUSTE Y OPERACION
La Prueba de Caminata se usa para vericar y ajustar el campo de visión que
cubren los sensores. El sensor entra se pone en la Prueba de Caminata 30
segundos después que se aplica energia a la unidad. Esto iniciará un período
de prueba de aproximadamente 5 minutos. Durante estos 5 minutos, el sensor
operará durante la luz de día y mantendrá la carga de iluminación encendida
por 5 segundos después que cese el movimiento. Pruebe como sigue (vea
Figura 4):
1. Apunte el Sensor hacia el área que va a cubrir.
2. ENCIENDA la energía a la unidad con el interruptor de circuito o fusible.
3. Después que la energía está ENCENDIDA por lo menos 30 segundos,
el sensor se pondrá automáticamente en el modo de PRUEBA DE
CAMINATA.
4. Párese fuera del área cubierta, luego camine a través del campo de visión
hasta que la luz (ces) se ENCIENDA.
5. Ajuste lo necesario la dirección de la cabeza del Sensor para mejorar el
área cubierta.
6. Gire el Disco de Sensibilidad hacia la izquierda para disminuir la
sensibilidad, lo cual puede ser necesario si está monitoreando una área
limitada o quiere hacer el Sensor menos sensible al viento, a hojas de
árboles y paso de animales. Girando el disco hacia la derecha ampliará el
área cubierta.
7. Repita los pasos del 4 al 6 hasta que el área que desea cubrir sea
satisfactoria. Para realizar otra Prueba de Caminata después que la unidad
ha regresado al modo automático, APAGUE la unidad por 15 segundos y
ENCIENDALA otra vez. Vea el paso 3.
8. Apriete las tuercas de seguridad y los tornillos del brazo para asegurar la
posición de la cabeza del Sensor.
9. Fije el Disco de Tiempo en el intervalo que desee. Girando el disco
totalmente hacia la izquierda ja el tiempo en 20 segundos (después del
tiempo de espera y que no detecte movimiento el Sensor APAGARA las
luces). Girando el disco totalmente hacia la derecha ja el tiempo en
15 minutos (después del tiempo de espera y que no detecte movimiento el
Sensor APAGARA las luces).
SENS LIGHT TIME
Sólo los Nos. de Cat.
PS110 and PS200 Only
Figura 4 - Posición de Discos
25

5
5. NOTE: Ensure that Gasket is seated on Sensor Mounting Plate before
wiring.
Connect wires per appropriate WIRING DIAGRAM, use 14AWG conductors
with 600V/105°C insulation: Twist strands of each lead tightly and, with
circuit conductors, push rmly into the appropriate wire connector. Screw
connector on clockwise making sure that no bare wire shows below the
connector. Secure each wire connector with electrical tape.
6. Carefully position the wires into the xture, then mount the Sensor Mounting
Plate onto the weather-resistant xture tting with the screws provided.
7. After positioning and adjusting the sensor (refer to Figure 3), restore power
at circuit breaker or fuse. INSTALLATION IS COMPLETE.
ADJUSTMENT AND OPERATION
The Walk Test is used to check and adjust the coverage pattern of the
Sensors. The Sensor will enter the WALK TEST mode 30 seconds after power
has been applied to the unit. This will initiate approximately a 5 minute WALK
TEST period. During these 5 minutes, the sensor will operate in daylight and
will keep its lighting load on for 5 seconds after motion ceases. Test as follows
(refer to Figure 4):
1. Aim the Sensor across the area it will be monitoring.
2. Turn ON power to the unit at the fuse or circuit breaker.
3. After power has been ON for at least 30 seconds, the sensor is
automatically set for the WALK TEST mode.
Figure 3 - Mounting Position
Correct
Incorrect
Incorrect
4. Atornille la perilla roscada en el brazo del Sensor en el hueco del centro de
la placa de pared.
5. NOTA: Asegure que la empaquetadura esté metida en la placa de Montaje
del Sensor antes de cablear.
Conecte los conductores de acuerdo al DIAGRAMA DE CABLEADO
apropiado, use conductores con aislante 600V/105°C: Tuerce los hilos de
cada conexión bien apretados y empújelos rmemente en el conector de
alambres. Enrosque cada conector hacia la derecha, asegurando que no se
vea ningún conductor desnudo debajo del conector. Asegure cada conector
con cinta aislante.
6. Coloque los conductores dentro del sujetador, luego monte la placa del
Sensor en el sujetador de montaje resistente a la intemperie, con los
tornillos provistos.
7. Después de colocar y ajustar el Sensor (ver Figura 4). Restablezca la
corriente con el fusible o interruptor de circuito. LA INSTALACION ESTA
COMPLETA.
Figura 3 - Posición de Montaje
Correcto
Incorrecto
Incorrecto
24

6
4. Stand well outside the coverage area then start walking across the eld-of-
view until the light(s) turn ON.
5. Adjust the aim of the Sensor head as necessary to improve coverage.
6. Turn the Sensitivity Dial counter-clockwise to reduce the sensitivity, which
may be necessary if monitoring a limited area or to make the Sensor less
sensitive to wind, blown foliage and wandering animals. Turning the dial
clockwise will maximize the Sensor’s coverage area.
7. Repeat steps 4 through 6 until the coverage is satisfactory. To set another
WALK TEST after the unit has returned to the automatic mode, turn power
to the unit OFF for at least 15 seconds and ON again. Refer to
step 3.
8. Tighten the locknuts and arm screws to secure the position of the Sensor
head.
9. Set the Time Dial to the desired interval. Turning the dial fully counter-
clockwise sets the time at 20 seconds (after the time delay and motion is no
longer detected, the Sensor will turn the Load OFF). Turning the dial fully
clockwise sets the time at 15 minutes, (after the time delay and motion is no
longer detected, the Sensor will turn the Load OFF).
Manual Override (if applicable):
To turn the lights OFF, ip the switch to the OFF position.
For Automatic operation, turn the switch ON for 30 seconds. The unit is now
in WALK TEST mode. To bypass the 5 minute WALK TEST mode, ip the
manual override switch on and off. This will cycle the power to the sensor and
place the sensor into Automatic mode.
To keep the lights ON, ip the switch OFF and ON 2 times within a 2 to 3
second period. To return to Automatic mode, ip the switch OFF and ON once.
For models PS110 and PS200 ONLY:
Ambient Light Level Adjustment: The Ambient Light Level is the amount
of light present. This setting will determine at what level of ambient light the
Sensor will turn ON when motion is detected.
Cat. Nos. PS110
and PS200 Only
Figure 4 - Dial Positions INSTRUCCIONES DE INSTALACION
ADVERTENCIA: PARA INSTALARSE Y/O USARSE DE ACUERDO CON
LOS CODIGOS ELECTRICOS Y NORMAS APROPIADAS.
ADVERTENCIA: SI USTED NO ESTÁ SEGURO ACERCA DE ALGUNA
DE LAS PARTES DE ESTAS INSTRUCCIONES, CONSULTE A UN
ELECTRICISTA CALIFICADO.
ADVERTENCIA: PARA EVITAR SOBRECALENTAMIENTO Y POSIBLE
DAÑO A ESTE PRODUCTO Y OTROS EQUIPOS, NO LO INSTALE PARA
CONTROLAR UN RECEPTACULO O ARTEFACTO OPERADO POR MOTOR
O TRANSFORMADOR APARTE DE ILUMINACION APROPIADA DE BAJO
VOLTAJE O FLUORESCENTE.
ADVERTENCIA: APESAR QUE ES RESISTENTE AL AGUA, ESTE
SENSOR NO SE DEBE EXPONER A PRECIPITACIONES DIRECTAS O
CANALETAS DE SALIDA DE AGUA DEL TECHO, YA QUE EXPONERLO
PROLONGADAMENTE PUEDE DAÑAR EL PRODUCTO.
OTRAS PRECAUCIONES Y NOTAS:
1. DESCONECTE LA ENERGIA CUANDO DE SERVICIO A LOS
SUJETADORES DE LUZ O CAMBIE FOCOS.
2. USE ESTE PRODUCTO SOLO CON CABLE DE COBRE O REVESTIDO
DE COBRE. PARA CABLE DE ALUMINIO USE SOLO PRODUCTOS
MARCADOS CON EL SIMBOLO CO/ALR O CU/AL.
3. MONTE EN UNA SUPERFICIE ESTABLE Y NO SOBRE FOCOS O
CORRIENTES DE AIRE.
4. NO APUNTE EL SENSOR DIRECTAMENTE A LA LUZ SOLAR O AL
REFLEJO DE LUZ DE SUPERFICIES BRILLANTES.
PARA INSTALAR:
1. ADVERTENCIA: PARA EVITAR DESCARGA ELECTRICA, FUEGO,
O MUERTE, INTERRUMPA EL PASO DE ENERGIA MEDIANTE EL
INTERRUPTOR DE CIRCUITO O FUSIBLE. ¡ASEGURESE QUE
EL CIRCUITO NO ESTE ENERGIZADO ANTES DE INICIAR LA
INSTALACION!
2A. Para instalaciones donde ya existe un interruptor para la iluminación
y no se desea sobreponer un interruptor manual (ver los Diagramas
de Cableado 1 y 2): Saque el interruptor de la caja de pared y
desconecte los conductores de los tornillos terminales. Tuerce los hilos de
cada conexión bien apretados y empújelos rmemente en el conector de
alambres, asegurando que no se vea ningún conductor desnudo debajo
del conector. Asegure cada conector con cinta aislante. Cubra la caja de
pared con una placa en blanco.
2B. Para instalaciones donde se desea sobreponer un interruptor
manual (ver los Diagramas de Cableado 3 y 4 ). En aplicaciones de
modicación, puede existir un interruptor en las CARGA(S). Si deja
este interruptor en el circuito, es posible que éste APAGUE la energía
en ambos el Sensor y en la CARGA, si se desea. Elija una ubicación
apropiada para el interruptor.
3. Elija una ubicación apropiada para el Sensor. Instale el sujetador NEMA
resistente a la intemperie en la ubicación del Sensor.
23
SENS LIGHT TIME

7
Set the Light Dial to the desired interval. Turning the dial fully counter-
clockwise sets the light level to the minimum of 5 LUX. Turning the dial fully
clockwise sets the light level to the maximum of 1000 LUX.
Temperature Compensation: These models have a built-in automatic
temperature compensator. This compensator automatically adjusts the
sensitivity (higher or lower) depending on the ambient outdoor temperature.
TROUBLESHOOTING GUIDE
NOTE: Each Sensor is manufactured using strict quality control procedure and
rigorous testing before leaving the factory. If the unit performs erratically, follow
the steps below to determine the cause.
• Lights do not turn ON
- Check to see that power is ON at circuit breaker or fuse.
- Ensure that bulbs/tubes are good.
- Ensure wiring is correct per Wiring Diagrams.
- Ensure that Sensor is aimed properly.
- Check to see that lens is clean and unobstructed.
- Ensure any switch on the xture is ON.
• Lights turn ON and OFF too quickly
- Ensure that no source of heat (i.e., lamps or vents) is too close to the
Sensor.
- Ensure that light is not reecting back towards the Sensor from white
or reective surfaces.
- Sensor may be more sensitive in winter than summer, due to sharper
contrast in Infrared.
• Lights do not turn OFF
- Check to see that time delay setting is at the minimum.
- Ensure that unit is rmly mounted on a stable surface that does not
sway in the wind.
- Ensure that Sensor is not aimed at swaying tree branches, a body of
water, air-conditioning or heater vents.
- Ensure that unit is not in the manual override mode by turning power
OFF for at least 5 seconds, then ON.
- If there is a switch in the circuit, make sure that it is in the proper
position.
- Check to see that the line voltage has not dropped below 100VAC (for
120VAC devices) due to the operation of a large appliance on the circuit.
• Lights turn ON in storms
Rain, snow and high winds can create changes in temperature that may
trigger the Sensor. False triggering can be minimized by installing the
Sensor in a protected location and by also turning down the sensitivity
control.
For additional information call Leviton’s Technical Support Line.
El No de Cat. PS200 de Leviton, cubre 200° con compensación de
temperatura a un rango de hasta de 15 m (50 pies) máximo cuando el sensor
se monta a una altura de 3 m (10 pies). La unidad provee supresión de
sobretensión e inmunidad de RFI. También tiene un ajuste de nivel de luz de
ambiente que le permite una operación bajo un amplio rango de iluminación.
Los Sensores de Ocupación están diseñados para su uso en exteriores,
pero también se puede usar en interiores. Está adecuado especialmente
para montarse en paredes exteriores utilizando una caja rectangular NEMA
resistente a la intemperie.
Los Nos. de Cat. RS110, PS110 y PS200 están listados por UL, certicados
por CSA y cumplen con los requerimientos del Título 24 de California.
Figura 1 - Campo de Visión (Horizontal)
15 metros
0 110˚
3 m
6 m
9 m
12 m
15 m
15 m
12 m
9 m
6 m
3 m
15 mètres
0 200˚
3 m
6 m
9 m
12 m
15 m
15 m
12 m
9 m
6 m
3 m
15 m
max.
12 m
max.
0
3 m
(No. de Cat. RS110 and PS110) (No. de Cat. PS200)
Figura 2 - Campo de Visión (Vertical)
22

Hot
Neutral
Hot
Hot
Hot
Neutral
Neutral
Neutral
Load
Load
Sensor
Line
Lampholder Wires
Lampholder Wires
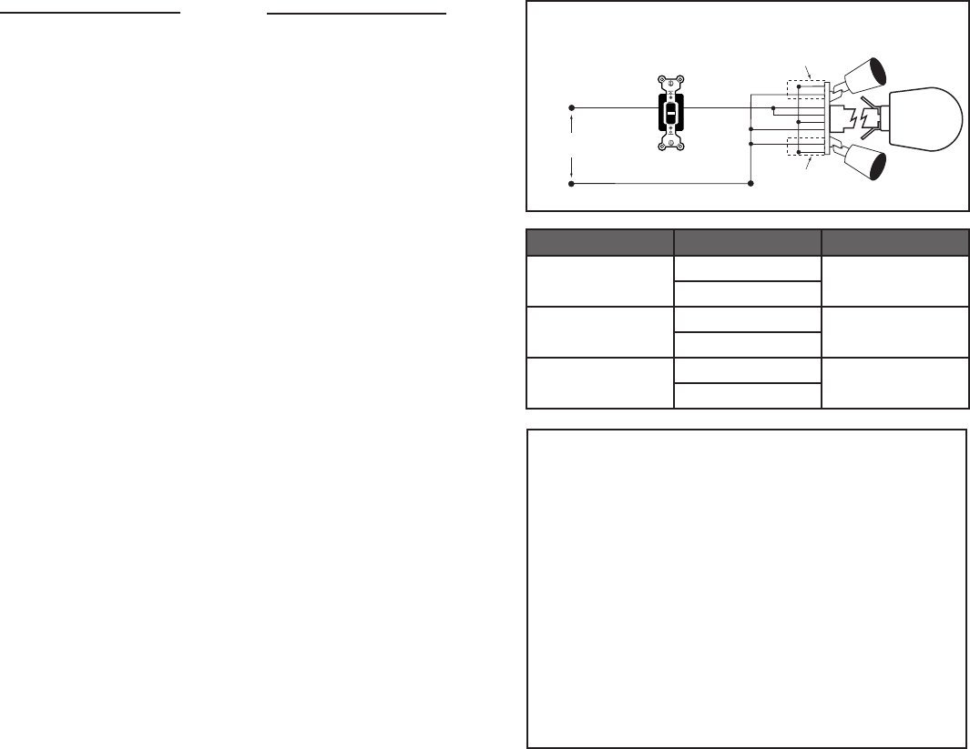
Wiring Diagram 1 - Cat. Nos. RS110-0, PS110-0 and PS200-0
Wiring Diagram 2 - Cat. Nos. RS110-F,
PS110-F and PS200-F
Wiring Diagram 3 - Cat. Nos. RS110-0, PS110-0 and PS200-0
8
CARACTERISTICAS
• Campo de visión ajustable hasta un máximo de 200˚ (PS200) o
110˚ (PS110/RS110) usando rejillas externas
• Sensibilidad, luz y tiempo ajustables (PS110/PS200)
• Sensibilidad y tiempo ajustable (RS110)
• Supresor de sobretensión, inmunidad RFI y compensación de temperatura
(PS110/PS200)
• Cuerpo resistente al agua
CAPACIDAD
DESCRIPCION
La familia de los Sensores de Ocupación para Exteriores consiste de tres
modelos, cada uno de los cuales usan tecnología de sensibilidad infrarroja,
tienen sensibilidad de detección y ajustes de tiempo de Encendido. Los
tres modelos tienen capacidad de tres modos de operación cuando ellos
son alimentados a través de un interruptor; Automático (normal), Prueba y
Continuo (las luces siempre Encendidas). Cuando se conectan directamente
a la corriente sin interruptor, sólo operan en el modo Automático. Estos
Sensores de Ocupación para Exteriores están diseñados para ser montados
a una altura entre 2.4 m y 3 m (8 a 10 pies) y tienen niveles máximos
similares, aunque los patrones de detección y el campo de visión varían
de acuerdo con el número del modelo. Cada sensor tiene un sensor y un
interruptor incorporado en una unidad y se instalan como parte de un circuito
de iluminación. Este ENCIENDE las luces cuando siente movimiento por
un cuerpo que emite calor dentro su campo de visión. También las APAGA
después que no hay movimiento dentro su campo de visión y termina el
tiempo jado por el usuario.
El No de Cat. RS110 de Leviton, provee la función básica de anochecer y
amanecer. Tiene un campo de visión de 110° y un rango de detección de
15 m (50 pies) máximo cuando la cabeza del sensor se monta a una altura de
3 m (10 pies).
El No de Cat. PS110 de Leviton, cubre 110° con compensación de
temperatura a un rango de hasta de 15 m (50 pies) máximo cuando el sensor
se monta a una altura de 3 m (10 pies). La unidad provee supresión de
sobretensión e inmunidad de RFI. También tiene un ajuste de nivel de luz de
ambiente que le permite una operación bajo un rango amplio de iluminación.
21
Hot
Neutral
Load
Load
Load
Hot
Hot
Neutral
Neutral
Line
Sensor
Hot Hot
Hot
Neutral
Neutral
Neutral
Load
Load
Load
Sensor
Switch
Line
# Cat. Voltaje
Tipo de
Carga
Consumo
de
Energía
Carga
Máx.
Carga
Máx. en
Watts
PS110-1
PS200-1
120VAC
60Hz
Incandescente 4W 8.34A 1,000W
Balastra 4.17A 500W
PS110-7
PS200-7
277VAC
60Hz
Incandescente 9W 7.00A 2,000W
Balastra 5.00A 1,385VA
PS110-7
PS200-7
230VAC
50/60Hz
Incandescente 8W 8.70A 2,000W
Balastra 5.00A 1,150VA
RS110-1 120VAC
60Hz Incandescente 4W 4.17A 500W

920
Tabla de Contenido
SECCION PAGINA
CARACTERISTICAS ..................................................21
CAPACIDAD ...............................................................21
DESCRIPCION ...........................................................21
INSTRUCCIONES DE INSTALACION .......................23
ADJUSTE Y OPERACION .........................................25
GUIA DE SOLUCION DE PROBLEMAS ....................26
Lista de Figuras
SECTION PAGE
Figura 1 - Campo de Visión (Horizontal) ....................22
Figura 2 - Campo de Visión (Vertical) .........................22
Figura 3 - Posición de Montaje ...................................24
Figure 4 - Posición de Discos .....................................25
Diagramas de Cableado .............................................28
Español Wiring Diagram 4 - Cat. Nos. RS110-F,
PS110-F and PS200-F
Switch
Hot
Neutral
Hot
Hot
Hot
Neutral
Neutral
Neutral
Load
Load
Sensor
Line
Lampholder Wires
Lampholder Wires
For Technical Assistance Call: 1-800-824-3005 (USA Only)
www.leviton.com
LIMITED 5 YEAR WARRANTY AND EXCLUSIONS
Leviton warrants to the original consumer purchaser and not for the benet of anyone
else that this product at the time of its sale by Leviton is free of defects in materials
and workmanship under normal and proper use for ve years from the purchase
date. Leviton’s only obligation is to correct such defects by repair or replacement, at
its option, if within such ve year period the product is returned prepaid, with proof
of purchase date, and a description of the problem to Leviton Manufacturing Co.,
Inc., Att: Quality Assurance Department, 201 North Service Road, Melville,
New York 11747. This warranty excludes and there is disclaimed liability for labor
for removal of this product or reinstallation. This warranty is void if this product is
installed improperly or in an improper environment, overloaded, misused, opened,
abused, or altered in any manner, or is not used under normal operating conditions
or not in accordance with any labels or instructions. There are no other or implied
warranties of any kind, including merchantability and tness for a particular
purpose, but if any implied warranty is required by the applicable jurisdiction, the
duration of any such implied warranty, including merchantability and tness for a
particular purpose, is limited to ve years. Leviton is not liable for incidental,
indirect, special, or consequential damages, including without limitation,
damage to, or loss of use of, any equipment, lost sales or prots or delay or
failure to perform this warranty obligation. The remedies provided herein are the
exclusive remedies under this warranty, whether based on contract, tort or otherwise.
Function Cat # Wire Color
Hot PSxxx-1 Black
PSxxx-7
Neutral PSxxx-1 White
PSxxx-7
Load PSxxx-1 Blue
PSxxx-7

Actif (noir)
Neutre (Blanc)
Noir
Noir
Blanc
Bleu
Bleu
Noir
Blanc
Blanc
Ligne
120 V c.a., 60 Hz
Interrupteur
Fils de douille
Fils de douille
Détecteur
Schéma de câblage 4 - NOS de cat. RS110-F,
PS110-F et PS200-F
Table des matières
SECTION PAGE
Caractéristiques générales .........................................11
Valeurs nominales ......................................................11
Description..................................................................11
Directives d'installation ...............................................13
Réglage et fonctionnement.........................................15
Diagnostic des anomalies...........................................16
Liste des Figures
SECTION PAGE
Figure 1 - Champ de vision (vue plongeante) ............12
Figure 2 - Champ de vision (vue latérale) ..................12
Figure 3 - Montage .....................................................14
Figure 4 - Disposition des boutons .............................15
Schémas de câblage ..................................................18
10
Français
EXCLUSIONS ET GARANTIE LIMITÉE DE 5 ANS
Leviton garantit au premier acheteur, et uniquement au crédit du dit acheteur, que ce
produit ne présente ni défauts de fabrication ni défauts de matériaux au moment de sa
vente par Leviton, et n’en présentera pas tant qu’il est utilisé de façon normale et adéquate,
pendant une période de 5 ans suivant la date d’achat. La seule obligation de Leviton
sera de corriger les dits défauts en réparant ou en remplaçant le produit défectueux si ce
dernier est retourné port payé, accompagné d’une preuve de la date d’achat, avant la n
de la dite période de 5 ans, à la Manufacture Leviton du Canada Limitée, au soin du
service de l’Assurance Qualité, 165 boul. Hymus, Pointe-Claire, (Québec), Canada
H9R 1E9. Par cette garantie, Leviton exclut et décline toute responsabilité envers les
frais de main d’oeuvre encourus pour retirer et réinstaller le produit. Cette garantie sera
nulle et non avenue si le produit est installé incorrectement ou dans un environnement
inadéquat, s’il a été surchargé, incorrectement utilisé, ouvert, employé de façon abusive
ou modié de quelle que manière que ce soit, ou s’il n’a été utilisé ni dans des conditions
normales ni conformément aux directives ou étiquettes qui l’accompagnent. Aucune
autre garantie, explicite ou implicite, y compris celle de qualité marchande et de
conformité au besoin, n’est donnée, mais si une garantie implicite est requise en vertu
de lois applicables, la dite garantie implicite, y compris la garantie de qualité marchande
et de conformité au besoin, est limitée à une durée de 5 ans. Leviton décline toute
responsabilité envers les dommages indirects, particuliers ou consécutifs, incluant,
sans restriction, la perte d’usage d’équipement, la perte de ventes ou les manques
à gagner, et tout dommage-intérêt découlant du délai ou du défaut de l’exécution
des obligations de cette garantie. Seuls les recours stipulés dans les présentes, qu’ils
soient d’ordre contractuel, délictuel ou autre, sont offerts en vertu de cette garantie
Pour toute aide technique, composer le :
1 800 405-5320 (Canada seulement)
www.leviton.com
19
Fonction No de cat. Couleur du l
Actif PSxxx-1 Noir
PSxxx-7
Neutre PSxxx-1 Blanc
PSxxx-7
Charge PSxxx-1 Bleu
PSxxx-7

CARACTÉRISTIQUES GÉNÉRALES
• Champ de vision entièrement réglable, pouvant atteindre 200° (PS200) ou
110° (PS110/RS110), au moyen d’obturateurs externes
• Réglages de la sensibilité, de l’intensité ambiante et du délai d’éteinte
(PS110/PS200)
• Réglage de la sensibilité et du délai d’éteinte (RS110)
• Limitation des surtensions transitoires, immunité au bruit radioélectrique et
compensation de la température (PS110/PS200)
• Boîtier hydrorésistant
VALEURS NOMINALES
DESCRIPTION
La gamme des détecteurs de mouvements pour l’extérieur de Leviton se
compose de trois modèles, lesquels fonctionnent tous au moyen de la
technologie de détection à infrarouge; ils sont tous dotés de réglages de la
sensibilité et du délai d’éteinte. Raccordé à un interrupteur, chacun de ces trois
modèles peut être utilisé en trois modes distincts : «automatique» (normal),
«vérication» et «continu» (luminaires toujours allumés). D’un autre côté,
s’ils sont raccordés directement à l’alimentation (aucun interrupteur), ils ne
peuvent fonctionner qu’en mode automatique. Ces dispositifs sont conçus
pour être installés à une hauteur variant entre 2,5 et 3 mètres (8 à 10 pieds),
et procurent tous une portée maximale semblable, bien que la disposition de
la zone de détection et du champ de vision peut varier selon le modèle utilisé.
Chacun de ces détecteurs est doté d’un commutateur et d’un capteur intégrés.
Raccordés à un circuit d’éclairage, ces dispositifs allument les luminaires
lorsqu’ils détectent les mouvements d’un corps émettant de la chaleur dans
leur champ de vision, et les éteignent ensuite, une fois le délai d’éteinte (réglé
par l’utilisateur) écoulé, et les mouvements arrêtés.
Le no de cat. RS110 de Leviton offre des fonctions de base entre le crépuscule
et l’aube. Lorsque sa tête de détection est installée à une hauteur de 3 mètres
(10 pi), il permet d’obtenir un champ de vision de 110°, lui donnant une portée
de détection de 15 mètres (50 pi).
11
Actif
Neutre
Neutre
Neutre
Charge
Charge
Charge
Actif
Actif
LIgne
Détecteur
Actif
Neutre
Actif
Actif
Actif
Neutre
Neutre
Neutre
Load
Load
Ligne
Fils de douille
Fils de douille
Détecteur
Actif Actif
Actif
Neutre
Neutre
Neutre
Charge
Load
Load
Détecteur
Interrupteur
Ligne
Schéma de câblage 1 - NOS de cat. RS110-0,
PS110-0 et PS200-0
Schéma de câblage 2 - NOS de cat. RS110-F,
PS110-F et PS200-F
Schéma de câblage 3 - NOS de cat. RS110-0,
PS110-0 et PS200-0
18
No de
cat. Tension
Type de
charge
Consommation
Courant
de
charge
maximal
Puissance
de
charge
maximale
PS110-1
PS200-1
120 V c.a.,
60 Hz
Incandescent
4 W 8,34 A 1 000 W
Ballast
4,17 A 500 W
PS110-7
PS200-7
277 V c.a.,
60 Hz
Incandescent
9 W 7,00 A 2 000 W
Ballast
5,00 A 1 385 VA
PS110-7
PS200-7
230 V c.a.,
50/60 Hz
Incandescent
8 W 8,70 A 2 000 W
Ballast
5,00 A 1 150 VA
RS110-1 120 V c.a.,
60 Hz Incandescent
4 W 4,17 A 500 W

Le no de cat. PS110 de Leviton procure une zone de détection de 110° (avec
compensation de température) dont la portée peut atteindre 15 mètres (50 pi)
s’il est installé à une hauteur de 3 mètres (10 pi) du sol. Ce dispositif est doté
de mécanismes de limitation des surtensions transitoires et d’immunité au
bruit radioélectrique. Il est en outre muni d’un réglage de l’éclairage ambiant
qui lui permet de fonctionner dans toute une variété de conditions lumineuses.
Le no de cat. PS200 de Leviton, quant à lui, procure une zone de détection de
200° (avec compensation de température) dont la portée peut atteindre
15 mètres (50 pi) lorsqu’il est installé à une hauteur de 3 mètres (10 pi) du sol.
Lui aussi est doté de mécanismes de limitation des surtensions transitoires
et d’immunité au bruit radioélectrique, et est muni d’un réglage de l’éclairage
ambiant qui lui permet de fonctionner dans toute une variété de conditions
lumineuses.
Bien que ces détecteurs de mouvements soient conçus pour l’extérieur, on
peut aussi les utiliser à l’intérieur. À l’extérieur, on recommande de les installer
au mur, dans des boîtes rectangulaires intempérisées de type NEMA.
Les détecteurs RS110, PS110 et PS200 sont homologués UL et CSA
(et conformes aux normes américaines California Title 24).
Figure 1 - Champ de vision (vue plongeante)
15 m
max.
12 m
max.
0
3 m
15 mètres
0 110˚
3 m
6 m
9 m
12 m
15 m
15 m
12 m
9 m
6 m
3 m
(NOS de cat. RS110 et PS110)
15 mètres
0 200˚
3 m
6 m
9 m
12 m
15 m
15 m
12 m
9 m
6 m
3 m
(NO de cat. PS200)
Figure 2 - Champ de vision (vue latérale)
12
- s’assurer que le dispositif ne soit pas en mode de commande manuelle
prioritaire en le mettant hors tension pendant 5 secondes puis en le
remettant sous tension;
- s’assurer qu’en présence d’un interrupteur sur le circuit, ce dernier soit
dans la position appropriée;
- s’assurer que la tension du circuit n’ait pas descendu sous 100 V c.a.
(pour les modèles de 120 V) en raison d’un gros appareil électrique
alimenté sur le même circuit.
• Les luminaires s’allument de façon intempestive pendant des orages :
- la pluie, la neige et les vents violents peuvent générer des variations de
températures qui peuvent faire déclencher le détecteur. Pour éviter les
déclenchements intempestifs, installer le détecteur à l’abri des
intempéries et en réduire la sensibilité.
Pour de plus amples renseignements, on peut communiquer avec la
ligne d’assistance technique de Leviton.
17

DIRECTIVES D’INSTALLATION
AVERTISSEMENT : INSTALLER OU UTILISER CONFORMÉMENT AUX
CODES DE L’ÉLECTRICITÉ EN VIGUEUR.
AVERTISSEMENT : À DÉFAUT DE BIEN COMPRENDRE LES
PRÉSENTES DIRECTIVES, EN TOUT OU EN PARTIE, ON DOIT FAIRE
APPEL À UN ÉLECTRICIEN QUALIFIÉ.
AVERTISSEMENT : POUR ÉVITER LA SURCHAUFFE OU
L’ENDOMMAGEMENT ÉVENTUEL DE CE DISPOSITIF ET DES APPAREILS
QUI LUI SONT RACCORDÉS, NE PAS L’INSTALLER POUR COMMANDER
UNE PRISE OU UN APPAREIL MOTORISÉ OU À TRANSFORMATEUR;
CE DISPOSITIF EST CONÇU POUR COMMANDER DES CHARGES
D’ÉCLAIRAGE FLUORESCENTES OU À BASSE TENSION.
AVERTISSEMENT : BIEN QU’IL SOIT INTEMPÉRISÉ, LE DÉTECTEUR
NE DOIT PAS ÊTRE DIRECTEMENT EXPOSÉ AUX PRÉCIPITATIONS OU
À L’EAU D’ÉCOULEMENT D’UN TOIT; L’EXPOSITION PROLONGÉE À DE
TELS ÉLÉMENTS PEUT CAUSER L’ENDOMMAGEMENT DU DISPOSITIF.
MISES EN GARDE ET REMARQUES COMPLÉMENTAIRES :
1. COUPER LE COURANT AVANT DE PROCÉDER À L’ENTRETIEN DES
LUMINAIRES OU AU REMPLACEMENT DES LAMPES.
2. N’UTILISER CE DISPOSITIF QU’AVEC DU FIL DE CUIVRE; EN
PRÉSENCE DE FIL D’ALUMINIUM, UTILISER SEULEMENT LES
DISPOSITIFS PORTANT LA MARQUE CU/AL OU CO/ALR.
3. CE DISPOSITIF DOIT ÊTRE FIXÉ À UNE SURFACE STABLE; IL NE DOIT
PAS ÊTRE INSTALLÉ AU-DESSUS D’UN LUMINAIRE OU À PROXIMITÉ
D’UNE BOUCHE D’AÉRATION.
4. LE DÉTECTEUR NE DOIT PAS ÊTRE ORIENTÉ VERS LE SOLEIL NI
VERS DES SURFACES QUI RÉFLÉCHISSENT LA LUMIÈRE.
INSTALLATION :
1. AVERTISSEMENT : POUR ÉVITER LES RISQUES D’INCENDIE, DE
CHOC ÉLECTRIQUE OU D’ÉLECTROCUTION, COUPER LE COURANT
AU FUSIBLE OU AU DISJONCTEUR ET S’ASSURER QUE LE CIRCUIT
SOIT BIEN COUPÉ AVANT DE PROCÉDER À L’INSTALLATION.
2A. Applications où un interrupteur existant commande les luminaires et
où la commande manuelle prioritaire N’EST PAS requise (se reporter
aux SCHÉMAS DE CÂBLAGE 1 et 2) : retirer l’interrupteur existant de
sa boîte et retirer les ls des bornes à vis. Torsader solidement ensemble
les extrémités dénudées et enfoncer fermement dans des marettes de
grosseur appropriée, en vissant ces dernières et en s’assurant qu’aucun
brin de cuivre ne dépasse; protéger au moyen de ruban isolant. Recouvrir
la boîte murale d’une plaque d’obturation.
2B. Applications où un interrupteur de commande manuelle prioritaire
est prévu (se reporter aux SCHÉMAS DE CÂBLAGE 3 et 4) : s’il s’agit
d’une installation rétroactive, il est possible que les charges d’éclairages
soient commandées par des interrupteurs. Si désiré, on peut laisser ces
interrupteurs raccordés au circuit et les utiliser pour couper (ou rétablir)
l’alimentation à la fois au détecteur et aux charges d’éclairage. Le cas
échéant, déterminer l’emplacement de l’interrupteur.
3. Déterminer l’emplacement du détecteur; y installer une boîte rectangulaire
intempérisée de type NEMA pour luminaires.
13
Pour passer en mode automatique, mettre l’interrupteur SOUS TENSION;
attendre 30 secondes. Le dispositif se met d’abord en mode d’ESSAI DE
PÉNÉTRATION DE CHAMP. Si on veut omettre cette étape de 5 minutes, il
suft de commuter l’interrupteur de commande manuelle prioritaire (hors/sous
tension), ce qui mettra le détecteur en mode automatique.
Pour garder les luminaires continuellement allumés, mettre l’interrupteur
HORS puis SOUS TENSION à deux reprises et ce, dans l’espace de 2 à 3
secondes. Pour revenir au mode automatique, remettre l’interrupteur HORS et
SOUS TENSION une fois.
Modèles PS110 et PS200 seulement :
Réglage de l’intensité de l’éclairage ambiant : ce réglage permet de
déterminer l’intensité de l’éclairage naturel à laquelle le détecteur devra
allumer ses charges d’éclairage s’il détecte des mouvements.
Effectuer ce réglage au moyen du bouton prévu à cet effet. En tournant ce
dernier complètement vers la gauche, on obtient le réglage minimal, soit une
intensité de 5 lux; en le tournant complètement vers la droite, on obtient le
réglage maximal, soit de 1 000 lux.
Compensation de température : ces modèles sont dotés d’un compensateur
de température automatique intégré, lequel règle automatiquement la
sensibilité du détecteur (en l’augmentant ou en la diminuant) en fonction de la
température ambiante.
DIAGNOSTIC DES ANOMALIES
REMARQUE : chacun de ces modèles est fabriqué suivant les procédures
de contrôle de qualité les plus strictes, et subit de rigoureuses mises à
l’essai avant de quitter l’usine. Si le dispositif ne semble pas fonctionner
correctement, suivre les étapes ci-dessous pour en déterminer la cause.
• Les luminaires ne s’allument pas :
- vérier si l’alimentation est sous tension au fusible ou au disjoncteur;
- vérier si les lampes sont en bon état;
- vérier si le dispositif est raccordé conformément au SCHÉMA DE
CÂBLAGE approprié;
- vérier si le détecteur est correctement orienté;
- s’assurer que la lentille soit propre et non obstruée;
- s’assurer que l’interrupteur de commande manuelle, le cas échéant,
soit hors tension;
- s’assurer que les commutateurs intégrés des luminaires, le cas échéant,
soient sous tension.
• Les luminaires s’allument et s’éteignent trop rapidement :
- s’assurer que le détecteur ne soit pas installé à proximité d’une source
de chaleur (luminaires, bouche d’aération, etc.);
- vérier si le détecteur reçoit de la lumière reétée par une surface
blanche ou rééchissante;
- vérier si le réglage de sensibilité est approprié à la saison (le détecteur
risque d’être plus sensible l’hiver puisque le contraste des températures
est plus perceptible).
• Les luminaires ne s’éteignent pas :
- vérier si le réglage du délai d’éteinte est trop élevé;
- s’assurer que le dispositif soit xé à une surface bien stable qui
n’oscille pas avec le vent;
- s’assurer que le détecteur ne soit pas orienté vers du branchage en
mouvement, une étendue d’eau ou un évent de chauffage ou de
climatisation;
16

4. Visser le raccord leté situé sur la tige du détecteur dans le trou central de
la plaque de montage.
5. REMARQUE : s’assurer que le joint d’étanchéité soit correctement
placé sur la plaque de montage du détecteur avant d’effectuer le
câblage. Raccorder les ls conformément au SCHÉMA DE CÂBLAGE
approprié, en utilisant des conducteurs de calibre 14 AWG avec isolant de
600 V/105 °C : torsader solidement ensemble les brins de chaque l de
sortie avec le conducteur correspondant et enfoncer fermement les raccords
dans une marette de grosseur appropriée, en vissant cette dernière et en
s’assurant qu’aucun brin de cuivre ne dépasse. Protéger les raccords au
moyen de ruban isolant.
6. Disposer soigneusement les ls dans la boîte; xer la plaque de montage du
détecteur dans la boîte intempérisée au moyen des vis fournies.
7. Après avoir placé et orienté le détecteur de façon appropriée (Figure 4),
rétablir le courant au fusible ou au disjoncteur; L’INSTALLATION EST
TERMINÉE.
14
Figure 3 - Montage
Correct
Incorrect
Incorrect
RÉGLAGE ET FONCTIONNEMENT
On procède à un ESSAI DE PÉNÉTRATION DU CHAMP (WALK TEST)
pour vérier et modier au besoin la plage de couverture des détecteurs. Le
dispositif entre automatiquement dans ce mode de vérication 30 secondes
après sa mise sous tension, et y reste pendant cinq minutes.
Pendant ce délai, le détecteur ne se préoccupe pas de la luminosité ambiante
et maintient ses charges allumées pendant cinq secondes après l’absence de
mouvements. Procéder alors de la manière suivante (gure 4) :
1. Orienter le détecteur vers la zone qu’il doit surveiller.
2. Alimenter le dispositif en rétablissant le courant au fusible ou au disjoncteur.
3. Après un délai d’au moins 30 secondes, le dispositif entre automatiquement
en mode d’ESSAI DE PÉNÉTRATION.
4. Aller se placer hors de la zone de détection puis lentement y pénétrer
jusqu’à ce que les luminaires s’allument.
5. Réajuster l’orientation de la tête de détection de manière à obtenir le champ
de vision requis.
6. Le cas échéant, réduire la sensibilité de détection en tournant le bouton
approprié vers la gauche; cela peut s’avérer nécessaire si la zone de
détection est petite ou si le détecteur est trop sensible aux mouvements
du vent, du feuillage ou d’animaux errants. Tourner le bouton vers la droite
pour augmenter la zone de détection ou la sensibilité du détecteur.
7. Reprendre les étapes 4 à 6 jusqu’à l’obtention de la couverture voulue. Pour
refaire un essai de pénétration après que le dispositif soit revenu en mode
automatique, mettre l'unité hors tension pendant au moins 15 secondes,
puis le remettre sous tension. Se reporter à l’étape 3.
8. Serrer les contre-écrous ainsi que les vis de la tige an d’assujettir
solidement la tête de détection.
9. Régler le délai d’éteinte à la valeur désirée. En tournant le bouton
complètement vers la gauche, on obtient le réglage minimal de 20
secondes (délai suivant lequel le détecteur éteint les charges d’éclairage s’il
ne capte plus de mouvement); en le tournant complètement vers la droite,
on obtient le délai maximal, soit de 15 minutes.
Commande manuelle prioritaire (selon l’application) :
Pour éteindre les luminaires, mettre l’interrupteur en position HORS TENSION.
15
SENS LIGHT TIME
NOS de cat. PS110
et PS200 seulement
Figure 4 - Disposition des boutons