HingeCover; ClampCover; FlushMount Enclosures; INLINE Instrumentation Landscape Enclosures An 1000448419 Catalog
2016-07-04
: Pdf 1000448419-Catalog 1000448419-Catalog B1 unilog
Open the PDF directly: View PDF
.
Page Count: 104 [warning: Documents this large are best viewed by clicking the View PDF Link!]
- Hinge-Cover
- Continuous-Hinge with Clamps, Type 4X
- Clamp-Cover
- Flush-Mount Enclosures
- INLINE™ Instrumentation Enclosures
- INLINE™ Landscape Instrumentation Enclosures and Accessories
- Consolets
- Pushbutton Enclosures
- CONCEPT™ Wall-Mount Enclosures
- Wall-Mount Enclosures and Accessories
- Continuous Hinge with 3-Point Latch, Type 4X
- Continuous Hinge with Clamps, Type 4X
- Continuous Hinge with Clamps, EMC, Type 4X
- Continuous Hinge Two-Door with 3-Point Latch, Type 4X
- Continuous Hinge Two-Door with 3-Point Latch, Type 12
- Replacement Door with 3-Point Latch, Type 4X
- Painted White with 3-Point Latch, Type 4X
- WATERSHED™ Wall-Mount Enclosures and Accessories
- Consoles and Accessories
- Floor-Mount and Free-Stand Enclosures
- Two-Door with 3-Point Latches, Type 4X
- Two-Door with Floor-Stands, Type 4X
- General Purpose Two-Door with Quarter-Turn Latches and Floor Stands, Type 4X
- General Purpose Single-Door Free-Stand with Quarter-Turn Latches, Type 4X
- Two-Door with 3-Point Latches and Floor-Stands, Type 12
- Free-Stand, Type 4X
- Free-Stand Single and Dual Access with 3-Point Latches, Type 4X
- Free-Stand Accessories Selection Guide
- Free-Stand, Type 12
- Hoffman WATERSHED™ Free-Stand
- PROLINE™ HMI Enclosures
- PROLINE™ Stainless Steel HMI Enclosures
- Sloped Front
- Covers for Upper Front of PROLINE™ Sloped Fronts
- Doors for Upper Front of PROLINE™ Sloped Fronts
- Covers for Rear of PROLINE™ Sloped Fronts
- Stainless Steel Pedestal
- Doors for Rear of PROLINE™ Sloped Fronts
- PROLINE™ Solid Rear Door Accessories
- Stainless Steel Extension
- Stainless Steel PROLINE™-PC Package, Type 12
- Stainless Steel PROLINE™-SY Package, Type 12

EQUIPMENT PROTECTIONSUBJECT TO CHANGE WITHOUT NOTICESTAINLESS STEEL130
2
2
763.422.2211
763.422.2600
STAINLESS STEEL
Stainless Steel
CHAPTER
2
Industrial+Automation+Supply!–!www.iasinc.com!,!Tel:!800,736,2345!

PH 763.422.2211 • FAX 763.422.2600 • PENTAIRPROTECT.COMEQUIPMENT PROTECTION STAINLESS STEEL 131
2
CHAPTER CONTENTS
HINGE-COVER
Continuous-Hinge with Clamps, Type 4X. . . . . . . . . . . . . . . . . . . . . . . . . . . . 132
Continuous Hinge with Clamps, EMC, Type 4X .......................134
CLAMP-COVER
Clamp Cover, Type 4X ..........................................136
FLUSH-MOUNT ENCLOSURES
PHARMAPRO™, Type 4X ........................................138
Mounting System .............................................141
INLINE™ INSTRUMENTATION ENCLOSURES
INLINE™, Type 4X .............................................142
INLINE™ LANDSCAPE INSTRUMENTATION ENCLOSURES AND ACCESSORIES
INLINE™ Landscape, Type 4X ....................................146
Optional Components Selection Guide .............................147
INLINE™ Landscape Panels .....................................147
CONSOLETS
Consolets, Type 12 ............................................148
PUSHBUTTON ENCLOSURES
Extra-Deep 30.5-mm Pushbutton Enclosures, Type 4X .................150
Extra-Deep 22.5-mm Pushbutton Enclosures, Type 4X. . . . . . . . . . . . . . . . . 152
30.5-mm and 22.5-mm Pushbutton Enclosures, Type 4X ...............154
CONCEPT™ WALL-MOUNT ENCLOSURES
CONCEPT™, Type 4X ...........................................156
CONCEPT™ with Additional Quarter-Turn Latches, Type 4X .............160
CONCEPT™ Sloped Top, Type 4X ..................................162
CONCEPT™ EMC, Type 4X .......................................164
WALL-MOUNT ENCLOSURES AND ACCESSORIES
Continuous Hinge with 3-Point Latch, Type 4X .......................166
Continuous Hinge with Clamps, Type 4X ............................168
Continuous Hinge with Clamps, EMC, Type 4X .......................172
Continuous Hinge Two-Door with 3-Point Latch, Type 4X ...............174
Continuous Hinge Two-Door with 3-Point Latch, Type 12 ...............175
Replacement Door with 3-Point Latch, Type 4X ......................178
Painted White with 3-Point Latch, Type 4X ..........................180
WATERSHED™ WALL-MOUNT ENCLOSURES AND ACCESSORIES
Hoffman WATERSHED™, Type 4X .................................182
Mounting Bracket Kit ..........................................184
Stand-Off Kit ................................................184
Padlocking Handle Kit .........................................184
Padlocking Latch Kit ..........................................184
CONSOLES AND ACCESSORIES
CONCEPT™ Console, Type 4X ....................................186
Caster Kit ...................................................187
Side Panels ..................................................187
FLOOR-MOUNT AND FREE-STAND ENCLOSURES
Two-Door with 3-Point Latches, Type 4X ...........................188
Two-Door with Floor-Stands, Type 4X ..............................190
General Purpose Two-Door with Quarter-Turn Latches and Floor Stands, Type 4X
192
General Purpose Single-Door Free-Stand with Quarter-Turn Latches, Type 4X 194
Two-Door with 3-Point Latches and Floor-Stands, Type 12 ..............196
Free-Stand, Type 4X ...........................................198
Free-Stand Single and Dual Access with 3-Point Latches, Type 4X .......200
Free-Stand Accessories Selection Guide ...........................206
Free-Stand, Type 12 ...........................................214
HOFFMAN WATERSHED™ FREE-STAND
WATERSHED™ Free-Stand, Type 4X ...............................216
Sanitary Leg Kits .............................................217
Floor Stand Kit, Stainless Steel ..................................218
PROLINE™ HMI ENCLOSURES
PROLINE™ Stainless Steel HMI Enclosures .........................220
Sloped Front .................................................222
Covers for Upper Front of PROLINE™ Sloped Fronts ...................222
Doors for Upper Front of PROLINE™ Sloped Fronts ....................223
Covers for Rear of PROLINE™ Sloped Fronts ........................223
Stainless Steel Pedestal .......................................224
Doors for Rear of PROLINE™ Sloped Fronts .........................224
PROLINE™ Solid Rear Door Accessories ............................224
Stainless Steel Extension .......................................225
Stainless Steel PROLINE™-PC Package, Type 12 .....................226
Stainless Steel PROLINE™-SY Package, Type 12 .....................230
Industrial+Automation+Supply!–!www.iasinc.com!,!Tel:!800,736,2345!

EQUIPMENT PROTECTIONSUBJECT TO CHANGE WITHOUT NOTICESTAINLESS STEEL132
2
JUNCTION BOXES Hinge-Cover
JUNCTION BOXES
HINGE-COVER
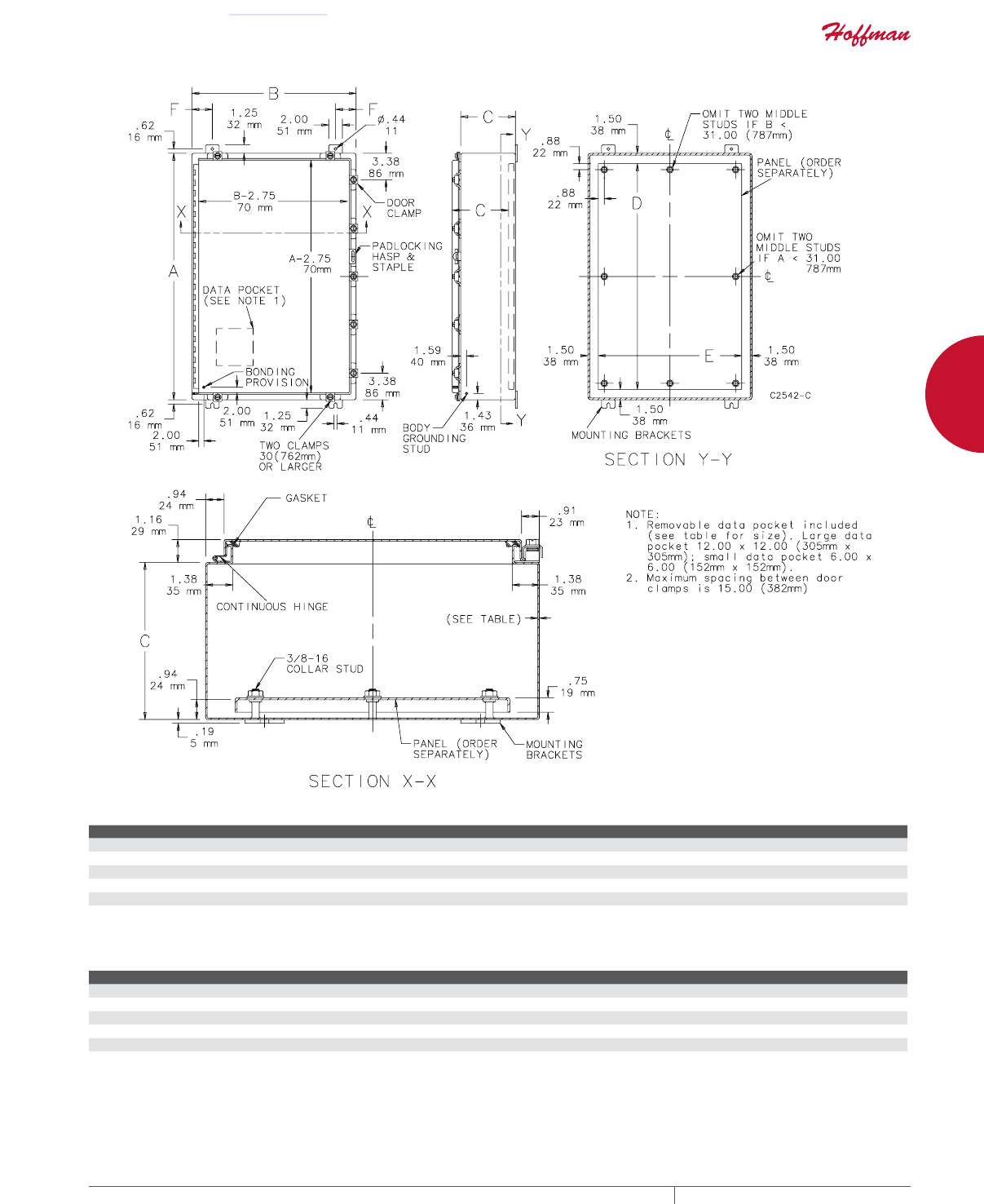
CONTINUOUSHINGE WITH CLAMPS, TYPE 4X
INDUSTRY STANDARDS
UL 50, 50E Listed; Type 3R, 4, 4X, 12; File No. E27567
cUL Listed per CSA C22.2 No 94; Type 3R, 4, 4X, 12; File No.
E27567
UL 508A Listed; Type 3R, 4, 4X, 12; File No. E61997
cUL Listed per CSA C22.2 No 94; Type 3R, 4, 4X, 12; File No.
E61997
NEMA/EEMAC Type 3R, 4, 4X, 12, 13
CSA File No. 42184: Type 4, 4X, 12
IEC 60529, IP66
Meets NEMA Type 3RX requirements
APPLICATION
Used in either indoor or outdoor applications, these enclosures
combine a rugged continuous hinge, seamless foam-in-place
gasket and stainless steel screw-down clamps for a reliable seal
that protects components from corrosive environments.
SPECIFICATIONS
• 16 and 14 gauge Type 304 or 316L stainless steel
• Seams continuously welded and ground smooth
• Seamless foam-in-place gasket
• Stainless steel screws and clamps
• Pull stainless steel continuous hinge pin to remove door
• Weldnuts provided for mounting optional panels and terminal
block kits
• Bonding provision on door and body
FINISH
Cover and sides of body have smooth #4 brushed finish.
ACCESSORIES
See also Accessories.
Fast-Operating Clamp-Cover Junction Box Clamp
Lock Kit for Clamp Cover Junction Boxes
Panels for Junction Boxes
Terminal Block Kit Assembly for Junction Boxes Overview
MODIFICATION AND CUSTOMIZATION
Hoffman excels at modifying and customizing products to your
specifications. Contact your local Hoffman sales office or distributor
for complete information.
BULLETIN: A51S
Standard Product
Catalog Number AxBxC in./mm
Stainless
Steel Type UL Listed
Body
Gauge
Cover
Gauge
Steel
Panel
Conductive
Panel
Panel Size
D x E
in./mm
Mounting
G x H
in./mm
Overall
L x W
in./mm
F
in./mm
J
in./mm
N
in./mm
T
in./mm
V
in./mm
Y
in./mm
A6044CHNFSS 6.00 x 4.00 x 4.00
152 x 102 x 102
304 508A 16 16 A6P4 A6P4G 4.88 x 2.88
124 x 73
6.75 x 2.00
171 x 51
7.50 x 4.94
191 x 125
3.50
89
3.62
92
2.38
60
3.00
76
0.31
8
0.56
14
A606CHNFSS 6.00 x 6.00 x 4.00
152 x 152 x 102
304 50, 50E 16 16 A6P6 A6P6G 4.88 x 4.88
124 x 124
6.75 x 4.00
171 x 102
7.50 x 6.94
191 x 176
3.50
89
3.62
92
2.38
60
5.00
127
0.31
8
0.56
14
A8064CHNFSS 8.00 x 6.00 x 4.00
203 x 152 x 102
304 50, 50E 14 16 A8P6 A8P6G 6.75 x 4.88
171 x 124
8.75 x 4.00
222 x 102
9.50 x 6.94
241 x 176
3.50
89
3.62
92
1.38
35
5.00
127
0.25
6
0.62
16
A1008CHNFSS 10.00 x 8.00 x 4.00
254 x 203 x 102
304 50, 50E 14 16 A10P8 A10P8G 8.75 x 6.88
222 x 175
10.75 x 6.00
273 x 152
11.50 x 8.94
292 x 227
3.50
89
3.62
92
1.38
35
7.00
178
0.25
6
0.62
16
A12106CHNFSS 12.00 x 10.00 x 6.00
305 x 254 x 152
304 50, 50E 14 16 A12P10 A12P10G 10.75 x 8.88
273 x 225
12.75 x 8.00
324 x 203
13.50 x 10.94
343 x 278
5.50
140
5.62
143
2.38
60
9.00
229
0.25
6
0.62
16
A1212CHNFSS 12.00 x 12.00 x 6.00
305 x 305 x 152
304 50, 50E 14 16 A12P12 A12P12G 10.75 x 10.88
273 x 276
12.75 x 10.00
324 x 254
13.50 x 12.94
343 x 329
5.50
140
5.62
143
2.38
60
11.00
279
0.25
6
0.62
16
A1412CHNFSS 14.00 x 12.00 x 6.00
356 x 305 x 152
304 50, 50E 14 16 A14P12 A14P12G 12.75 x 10.88
324 x 276
14.75 x 10.00
375 x 254
15.50 x 12.94
394 x 329
5.50
140
5.62
143
2.38
60
11.00
279
0.25
6
0.62
16
A1614CHNFSS 16.00 x 14.00 x 6.00
406 x 356 x 152
304 508A 14 16 A16P14 A16P14G 14.75 x 12.88
375 x 327
16.75 x 12.00
425 x 305
17.50 x 14.94
445 x 379
5.50
140
5.62
143
2.38
60
13.00
330
0.25
6
0.62
16
A6044CHNFSS6 6.00 x 4.00 x 4.00
152 x 102 x 102
316L 50, 50E 16 16 A6P4 A6P4G 4.88 x 2.88
124 x 73
6.75 x 2.00
171 x 51
7.50 x 4.94
191 x 125
3.50
89
3.62
92
2.38
60
3.00
76
0.31
8
0.56
14
A606CHNFSS6 6.00 x 6.00 x 4.00
152 x 152 x 102
316L 50, 50E 16 16 A6P6 A6P6G 4.88 x 4.88
124 x 124
6.75 x 4.00
171 x 102
7.50 x 6.94
191 x 176
3.50
89
3.62
92
2.38
60
5.00
127
0.31
8
0.56
14
A8064CHNFSS6 8.00 x 6.00 x 4.00
203 x 152 x 102
316L 50, 50E 14 16 A8P6 A8P6G 6.75 x 4.88
171 x 124
8.75 x 4.00
222 x 102
9.50 x 6.94
241 x 176
3.50
89
3.62
92
1.38
35
5.00
127
0.25
6
0.62
16
A1008CHNFSS6 10.00 x 8.00 x 4.00
254 x 203 x 102
316L 50, 50E 14 16 A10P8 A10P8G 8.75 x 6.88
222 x 175
10.75 x 6.00
273 x 152
11.50 x 8.94
292 x 227
3.50
89
3.62
92
1.38
35
7.00
178
0.25
6
0.62
16
A12106CHNFSS6 12.00 x 10.00 x 6.00
305 x 254 x 152
316L 50, 50E 14 16 A12P10 A12P10G 10.75 x 8.88
273 x 225
12.75 x 8.00
324 x 203
13.50 x 10.94
343 x 278
5.50
140
5.62
143
2.38
60
9.00
229
0.25
6
0.62
16
A1212CHNFSS6 12.00 x 12.00 x 6.00
305 x 305 x 152
316L 50, 50E 14 16 A12P12 A12P12G 10.75 x 10.88
273 x 276
12.75 x 10.00
324 x 254
13.50 x 12.94
343 x 329
5.50
140
5.62
143
2.38
60
11.00
279
0.25
6
0.62
16
A1412CHNFSS6 14.00 x 12.00 x 6.00
356 x 305 x 152
316L 50, 50E 14 16 A14P12 A14P12G 12.75 x 10.88
324 x 276
14.75 x 10.00
375 x 254
15.50 x 12.94
394 x 329
5.50
140
5.62
143
2.38
60
11.00
279
0.25
6
0.62
16
A1614CHNFSS6 16.00 x 14.00 x 6.00
406 x 356 x 152
316L 50, 50E 14 16 A16P14 A16P14G 14.75 x 12.88
375 x 327
16.75 x 12.00
425 x 305
17.50 x 14.94
445 x 379
5.50
140
5.62
143
2.38
60
13.00
330
0.25
6
0.62
16
A6044CHNFSS and A6044CHNFSS6 UL 508A Listed. The remaining catalog numbers are UL 50 Listed.
Purchase panels separately. Optional stainless steel, composite and aluminum panels are available for most sizes.
Industrial+Automation+Supply!–!www.iasinc.com!,!Tel:!800,736,2345!

EQUIPMENT PROTECTIONSUBJECT TO CHANGE WITHOUT NOTICESTAINLESS STEEL134
2
JUNCTION BOXES Hinge-Cover
CONTINUOUS HINGE WITH CLAMPS, EMC, TYPE 4X
INDUSTRY STANDARDS
UL 50, 50E Listed; Type 4, 4X, 12; File No. E27567
cUL Listed per CSA C22.2 No 94; Type 4, 4X, 12; File No. E27567
UL 508A Listed; Type 4, 4X, 12; File No. E61997
cUL Listed per CSA C22.2 No 94; Type 4, 4X, 12; File No. E61997
NEMA/EEMAC Type 4, 4X, 12, 13
CSA File No. 42184: Type 4, 4X, 12
IEC 60529, IP66
APPLICATION
Use this enclosure in corrosive indoor or outdoor applications to
contain stray electromagnetic interference (EMI) signals produced
by internal components and to shield those components from
external EMI/RFI interference.
SPECIFICATIONS
• 16 and 14 gauge Type 304 stainless steel
• Seams continuously welded and ground smooth
• Seamless foam-in-place gasket adjacent to monel mesh assures
water-tight, dust-tight and EMI seal
• Stainless steel screws and clamps
• Removable door with continuous hinge
• Weldnuts provided for mounting optional panels and terminal kits
• Bonding provision on door
FINISH
Cover and sides of body have a smooth #4 brushed finish.
ACCESSORIES
See also Accessories.
Fast-Operating Clamp-Cover Junction Box Clamp
Panels for Junction Boxes
Terminal Block Kit Assembly for Junction Boxes Overview
Steel and Stainless Steel Window Kits
BULLETIN: A51SE
Standard Product
Catalog Number AxBxC in./mm UL Listed
Body
Gauge
Cover
Gauge
Stainless
Steel
Panel
Conductive
Steel
Panel
Panel Size
D x E
in./mm
Mounting
G x H
in./mm
Overall
L x W
in./mm
F
in./mm
J
in./mm
N
in./mm
T
in./mm
V
in./mm
Y
in./mm
A6044CHEMCSS 6.00 x 4.00 x 4.00
152 x 102 x 102
508A 16 16 A6P4SS A6P4G 4.88 x 2.88
124 x 73
6.75 x 2.00
171 x 51
7.50 x 4.94
191 x 125
3.50
89
3.62
92
2.38
60
3.00
76
0.31
8
0.56
14
A606CHEMCSS 6.00 x 6.00 x 4.00
152 x 152 x 102
50, 50E 16 16 A6P6SS A6P6G 4.88 x 4.88
124 x 124
6.75 x 4.00
171 x 102
7.50 x 6.94
191 x 176
3.50
89
3.62
92
2.38
60
5.00
127
0.31
8
0.56
14
A8064CHEMCSS 8.00 x 6.00 x 4.00
203 x 152 x 102
50, 50E 14 16 A8P6SS A8P6G 6.75 x 4.88
171 x 124
8.75 x 4.00
222 x 102
9.50 x 6.94
241 x 176
3.50
89
3.62
92
1.38
35
5.00
127
0.25
6
0.62
16
A1008CHEMCSS 10.00 x 8.00 x 4.00
254 x 203 x 102
50, 50E 14 16 A10P8SS A10P8G 8.75 x 6.88
222 x 175
10.75 x 6.00
273 x 152
11.50 x 8.94
292 x 227
3.50
89
3.62
92
1.38
35
7.00
178
0.25
6
0.62
16
A12106CHEMCSS 12.00 x 10.00 x 6.00
305 x 254 x 152
50, 50E 14 16 A12P10SS A12P10G 10.75 x 8.88
273 x 225
12.75 x 8.00
324 x 203
13.50 x 10.94
343 x 278
5.50
140
5.62
143
2.38
60
9.00
229
0.25
6
0.62
16
A1212CHEMCSS 12.00 x 12.00 x 6.00
305 x 305 x 152
50, 50E 14 16 A12P12SS A12P12G 10.75 x 10.88
273 x 276
12.75 x 10.00
324 x 254
13.50 x 12.94
343 x 329
5.50
140
5.62
143
2.38
60
11.00
279
0.25
6
0.62
16
A1412CHEMCSS 14.00 x 12.00 x 6.00
356 x 305 x 152
50, 50E 14 16 A14P12SS A14P12G 12.75 x 10.88
324 x 276
14.75 x 10.00
375 x 254
15.50 x 12.94
394 x 329
5.50
140
5.62
143
2.38
60
11.00
279
0.25
6
0.62
16
A1614CHEMCSS 16.00 x 14.00 x 6.00
406 x 356 x 152
50, 50E 14 16 A16P14SS A16P14G 14.75 x 12.88
375 x 327
16.75 x 12.00
425 x 305
17.50 x 14.94
445 x 379
5.50
140
5.62
143
2.38
60
13.00
330
0.25
6
0.62
16
Purchase panels separately.
Industrial+Automation+Supply!–!www.iasinc.com!,!Tel:!800,736,2345!

EQUIPMENT PROTECTIONSUBJECT TO CHANGE WITHOUT NOTICESTAINLESS STEEL136
2
JUNCTION BOXES Clamp-Cover
CLAMP-COVER
CLAMP COVER, TYPE 4X
INDUSTRY STANDARDS
UL 50 Listed; Type 3R, 4, 4X, 12; File No. E27525
cUL Listed per CSA C22.2 No 94; Type 3R, 4, 4X, 12; File No.
E27525
UL 508A, 508 Listed; Type 3R, 4, 4X, 12; File No. E61997
cUL Listed per CSA C22.2 No 94; Type 3R, 4, 4X, 12; File No.
E61997
NEMA/EEMAC Type 3R, 4, 4X, 12, 13
CSA File No. 42184: Type 4, 4X, 12
IEC 60529, IP66
Meets Type 3RX requirements
APPLICATION
Used in either corrosive or outdoor applications, Clamp Cover
Enclosures combine a seamless foam-in-place gasket with
stainless steel screw-down clamps for a consistent and reliable
seal, yet the cover is easily removed for access and modifications.
SPECIFICATIONS
• 16 and 14 gauge Type 304 or 316L stainless steel
• Seams continuously welded and ground smooth
• Seamless foam-in-place gasket
• Stainless steel screws and clamps
• Weldnuts provided for mounting optional panels and terminal
block kits in size 6.00 x 4.00 in. (152 x 102 mm) and larger
• Bonding provision on door and body
FINISH
Cover and sides of body have smooth #4 brushed finish.
ACCESSORIES
See also Accessories.
Fast-Operating Clamp-Cover Junction Box Clamp
Panels for Junction Boxes
Terminal Block Kit Assembly for Junction Boxes Overview
Steel and Stainless Steel Window Kits
See also the Popular Accessories table following the Standard Products
table.
MODIFICATION AND CUSTOMIZATION
Hoffman excels at modifying and customizing products to your
specifications. Contact your local Hoffman sales office or distributor
for complete information.
BULLETIN: A51S
Standard Product
Catalog Number AxBxC in./mm UL Listed
Body
Gauge
Cover
Gauge
Steel
Panel
Conductive
Steel
Panel
Panel Size
D x E
in./mm
Mounting
G x H
in./mm
Overall
L x W
in./mm
F
in./mm
J
in./mm
M
in./mm
N
in./mm
T
in./mm
V
in./mm
Y
in./mm
A404NFSS 4.00 x 4.00 x 3.00
102 x 102 x 76
508A 16 16 No Panel No Panel No Panel
No Panel
4.75 x 2.00
121 x 51
5.50 x 5.38
140 x 137
—
—
2.56
65
1.38
35
1.38
35
3.00
76
—
—
—
—
A404NFSS6 4.00 x 4.00 x 3.00
102 x 102 x 76
508A 16 16 No Panel No Panel No Panel
No Panel
4.75 x 2.00
121 x 51
5.50 x 5.38
140 x 137
—
—
2.56
65
1.38
35
1.38
35
3.00
76
—
—
—
—
A6044NFSS 6.00 x 4.00 x 4.00
152 x 102 x 102
508A 16 16 A6P4 A6P4G 4.88 x 2.88
124 x 73
6.75 x 2.00
171 x 51
7.50 x 5.38
191 x 137
3.50
89
3.56
90
1.38
35
1.38
35
3.00
76
0.31
8
0.56
14
A6044NFSS6 6.00 x 4.00 x 4.00
152 x 102 x 102
508A 16 16 A6P4 A6P4G 4.88 x 2.88
124 x 73
6.75 x 2.00
171 x 51
7.50 x 5.38
191 x 137
3.50
89
3.56
90
1.38
35
1.38
35
3.00
76
0.31
8
0.56
14
A8064NFSS 8.00 x 6.00 x 4.00
203 x 152 x 102
50, 50E 14 16 A8P6 A8P6G 6.75 x 4.88
171 x 124
8.75 x 4.00
222 x 102
9.50 x 7.38
241 x 187
3.50
89
3.56
90
—
—
1.38
35
5.00
127
0.25
6
0.62
16
A8064NFSS6 8.00 x 6.00 x 4.00
203 x 152 x 102
50, 50E 14 16 A8P6 A8P6G 6.75 x 4.88
171 x 124
8.75 x 4.00
222 x 102
9.50 x 7.38
241 x 187
3.50
89
3.56
90
—
—
1.38
35
5.00
127
0.25
6
0.62
16
A606NFSS 6.00 x 6.00 x 4.00
152 x 152 x 102
50, 50E 16 16 A6P6 A6P6G 4.88 x 4.88
124 x 124
6.75 x 4.00
171 x 102
7.50 x 7.38
191 x 187
3.50
89
3.56
90
2.38
60
1.38
35
5.00
127
0.31
8
0.56
14
A606NFSS6 6.00 x 6.00 x 4.00
152 x 152 x 102
50, 50E 16 16 A6P6 A6P6G 4.88 x 4.88
124 x 124
6.75 x 4.00
171 x 102
7.50 x 7.38
191 x 187
3.50
89
3.56
90
2.38
60
1.38
35
5.00
127
0.31
8
0.56
14
A1008NFSS 10.00 x 8.00 x 4.00
254 x 203 x 102
50, 50E 14 16 A10P8 A10P8G 8.75 x 6.88
222 x 175
10.75 x 6.00
273 x 152
11.50 x 9.38
292 x 238
3.50
89
3.56
90
—
—
1.38
35
7.00
178
0.25
6
0.62
16
A1008NFSS6 10.00 x 8.00 x 4.00
254 x 203 x 102
50, 50E 14 16 A10P8 A10P8G 8.75 x 6.88
222 x 175
10.75 x 6.00
273 x 152
11.50 x 9.38
292 x 238
3.50
89
3.56
90
—
—
1.38
35
7.00
178
0.25
6
0.62
16
A12106NFSS 12.00 x 10.00 x 6.00
305 x 254 x 152
50, 50E 14 16 A12P10 A12P10G 10.75 x 8.88
273 x 225
12.75 x 8.00
324 x 203
13.50 x 11.38
343 x 289
5.50
140
5.56
141
—
—
2.38
60
9.00
229
0.25
6
0.62
16
A12106NFSS6 12.00 x 10.00 x 6.00
305 x 254 x 152
50, 50E 14 16 A12P10 A12P10G 10.75 x 8.88
273 x 225
12.75 x 8.00
324 x 203
13.50 x 11.38
343 x 289
5.50
140
5.56
141
—
—
2.38
60
9.00
229
0.25
6
0.62
16
A1412NFSS 14.00 x 12.00 x 6.00
356 x 305 x 152
50, 50E 14 16 A14P12 A14P12G 12.75 x 10.88
324 x 276
14.75 x 10.00
375 x 254
15.50 x 13.38
394 x 340
5.50
140
5.56
141
—
—
2.38
60
11.00
279
0.25
6
0.62
16
A1412NFSS6 14.00 x 12.00 x 6.00
356 x 305 x 152
50, 50E 14 16 A14P12 A14P12G 12.75 x 10.88
324 x 276
14.75 x 10.00
375 x 254
15.50 x 13.38
394 x 340
5.50
140
5.56
141
—
—
2.38
60
11.00
279
0.25
6
0.62
16
A1614NFSS 16.00 x 14.00 x 6.00
406 x 356 x 152
50, 50E 14 16 A16P14 A16P14G 14.75 x 12.88
375 x 327
16.75 x 12.00
425 x 305
17.50 x 15.38
445 x 391
5.50
140
5.56
141
—
—
2.38
60
13.00
330
0.25
6
0.62
16
A1614NFSS6 16.00 x 14.00 x 6.00
406 x 356 x 152
50, 50E 14 16 A16P14 A16P14G 14.75 x 12.88
375 x 327
16.75 x 12.00
425 x 305
17.50 x 15.38
445 x 391
5.50
140
5.56
141
—
—
2.38
60
13.00
330
0.25
6
0.62
16
A404NFSS, A404NFSS6, A6044NFSS and A6044NFSS6 are UL 508A Listed.
The remaining catalog numbers are UL 50 Listed.
Catalog numbers ending in “6” are Type 316L stainless steel.
Purchase panels separately. Optional stainless steel, composite and aluminum panels are also available for most sizes.
Industrial+Automation+Supply!–!www.iasinc.com!,!Tel:!800,736,2345!

PH 763.422.2211 • FAX 763.422.2600 • PENTAIRPROTECT.COMEQUIPMENT PROTECTION STAINLESS STEEL 137
2
JUNCTION BOXES Clamp-Cover
Popular Accessories
Enclosure Width (b Dimension) Hole Seals
4 in. (102 mm) AS050SS
6 in. (152 mm) AS050SS
8 in. (203 mm) AS050SS
10 in. (254 mm) AS050SS
12 in. (305 mm) AS050SS
14 in. (356 mm) AS050SS
Industrial+Automation+Supply!–!www.iasinc.com!,!Tel:!800,736,2345!

EQUIPMENT PROTECTIONSUBJECT TO CHANGE WITHOUT NOTICESTAINLESS STEEL138
2
FLUSHMOUNT ENCLOSURES FlusH-mount enClosures
FLUSH-MOUNT ENCLOSURES
FLUSH-MOUNT ENCLOSURES
PHARMAPRO™, TYPE 4X
INDUSTRY STANDARDS
UL 508A Listed; Type 4, 4X, 12, 13; File No. E61997
cUL Listed per CSA C22.2 No 94; Type 4, 4X, 12, 13; File No.
E61997
NEMA/EEMAC Type 4, 4X, 12, 13
IEC 60529, IP66
APPLICATION
PHARMAPRO™ Enclosures are specifically designed for the
pharmaceutical industry with flush mounting and a low RA value
finish that minimizes surface crevices for thorough wipe-downs
and eliminates areas where contaminants can accumulate. The
mounting system pulls the enclosure flush and tight to the wall and
can be used on block or stud walls.
FEATURES
• Specifically designed for pharmaceutical industry—flush
mounting and flat surfaces eliminate areas where contaminants
can accumulate
• Low RA value of PHARMAPRO finish minimizes surface crevices,
allowing for a thorough wipe-down
• Enclosure does not protrude into the manufacturing area
• Mounting system included
SPECIFICATIONS
• Enclosure body manufactured from 14 gauge Type 304 stainless
steel
•
Mounting flange manufactured from 10 gauge Type 316L stainless
steel
• Screw cover and hinged door manufactured from 12 gauge Type
316L stainless steel
• Seams continuously welded and ground smooth
• Type 316L stainless steel lift-off hinges used with hinged door
• Type 316L stainless steel slotted oval-head fasteners used with
screw cover
• Stainless steel quarter-turn latches used with hinged door
• FDA-approved silicone gasket
• Grounding stud on body; bonding provision on cover or door
FINISH
PHARMAPRO low RA finish (typically 15-20 RA) applied to cover,
door and mounting flange
ACCESSORIES
See also Accessories.
Industrial Corrosion Inhibitors
CONCEPT™ Panels
MODIFICATION AND CUSTOMIZATION
Hoffman excels at modifying and customizing products to your
specifications. Contact your local Hoffman sales office or distributor
for complete information.
BULLETIN: A20S
Industrial+Automation+Supply!–!www.iasinc.com!,!Tel:!800,736,2345!

PH 763.422.2211 • FAX 763.422.2600 • PENTAIRPROTECT.COMEQUIPMENT PROTECTION STAINLESS STEEL 139
2
FLUSHMOUNT ENCLOSURES FlusH-mount enClosures
Standard Product Hinged-Door
Catalog Number AxBxC in./mm
Door
Gauge
Body
Gauge
Size of
Mounting Cutout
in./mm Panel
Latches
Qty.
AFM20144SS 20.00 x 14.00 x 4.00
508 x 356 x 102
12 14 21.00 x 15.00
533 x 381
CP2014 3
AFM20204SS 20.00 x 20.00 x 4.00
508 x 508 x 102
12 14 21.00 x 21.00
533 x 533
CP2020 5
AFM12126SS 12.00 x 12.00 x 6.00
305 x 305 x 152
12 14 13.00 x 13.00
330 x 330
CP1212 2
AFM16126SS 16.00 x 12.00 x 6.00
406 x 305 x 152
12 14 17.00 x 13.00
432 x 330
CP1612 3
AFM20166SS 20.00 x 16.00 x 6.00
508 x 406 x 152
12 14 21.00 x 17.00
533 x 432
CP2016 5
AFM20206SS 20.00 x 20.00 x 6.00
508 x 508 x 152
12 14 21.00 x 21.00
533 x 533
CP2020 5
AFM24206SS 24.00 x 20.00 x 6.00
610 x 508 x 152
12 14 25.00 x 21.00
635 x 533
CP2420 5
AFM24248SS 24.00 x 24.00 x 8.00
610 x 610 x 203
12 14 25.00 x 25.00
635 x 635
CP2424 7
AFM30248SS 30.00 x 24.00 x 8.00
762 x 610 x 203
12 14 21.00 x 25.00
533 x 635
CP3024 8
AFM242010SS 24.00 x 20.00 x 10.00
610 x 508 x 254
12 14 25.00 x 21
635 x 533
CP2420 5
AFM302410SS 30.00 x 24.00 x 1.00
762 x 610 x 25
12 14 31.00 x 25.00
787 x 635
CP3024 8
Industrial+Automation+Supply!–!www.iasinc.com!,!Tel:!800,736,2345!

EQUIPMENT PROTECTIONSUBJECT TO CHANGE WITHOUT NOTICESTAINLESS STEEL140
2
FLUSHMOUNT ENCLOSURES FlusH-mount enClosures
Standard Product Screw-Cover
Catalog Number AxBxC in./mm
Door
Gauge
Body
Gauge
Size of
Mounting Cutout
in./mm Panel
Latches
Qty.
AFMSC20124SS 20.00 x 12.00 x 4.00
508 x 305 x 102
12 14 22.50 x 14.25
565 x 362
CP2012 NA
AFMSC20204SS 20.00 x 20.00 x 4.00
508 x 508 x 102
12 14 22.25 x 22.25
565 x 565
CP2020 NA
AFMSC12126SS 12.00 x 12.00 x 6.00
305 x 305 x 152
12 14 14.25 x 14.25
362 x 362
CP1212 NA
AFMSC16126SS 16.00 x 12.00 x 6.00
406 x 305 x 152
12 14 18.25 x 14.25
464 x 362
CP1612 NA
AFMSC20166SS 20.00 x 16.00 x 6.00
508 x 406 x 152
12 14 22.25 x 18.25
565 x 464
CP2016 NA
AFMSC20206SS 20.00 x 20.00 x 6.00
508 x 508 x 152
12 14 22.25 x 22.25
565 x 565
CP2020 NA
AFMSC24206SS 24.00 x 20.00 x 6.00
610 x 508 x 152
12 14 26.25 x 22.25
667 x 565
CP2420 NA
AFMSC24248SS 24.00 x 24.00 x 8.00
610 x 610 x 203
12 14 26.25 x 26.25
667 x 667
CP2424 NA
AFMSC30248SS 30.00 x 24.00 x 8.00
762 x 610 x 203
12 14 32.25 x 26.25
819 x 667
CP3024 NA
AFMSC242010SS 24.00 x 20.00 x 10.00
610 x 508 x 254
12 14 26.25 x 22.25
667 x 565
CP2420 NA
AFMSC302410SS 30.00 x 24.00 x 10.00
762 x 610 x 254
12 14 32.25 x 26.25
819 x 667
C3024 NA
Industrial+Automation+Supply!–!www.iasinc.com!,!Tel:!800,736,2345!

PH 763.422.2211 • FAX 763.422.2600 • PENTAIRPROTECT.COMEQUIPMENT PROTECTION STAINLESS STEEL 141
2
FLUSHMOUNT ENCLOSURES FlusH-mount enClosures
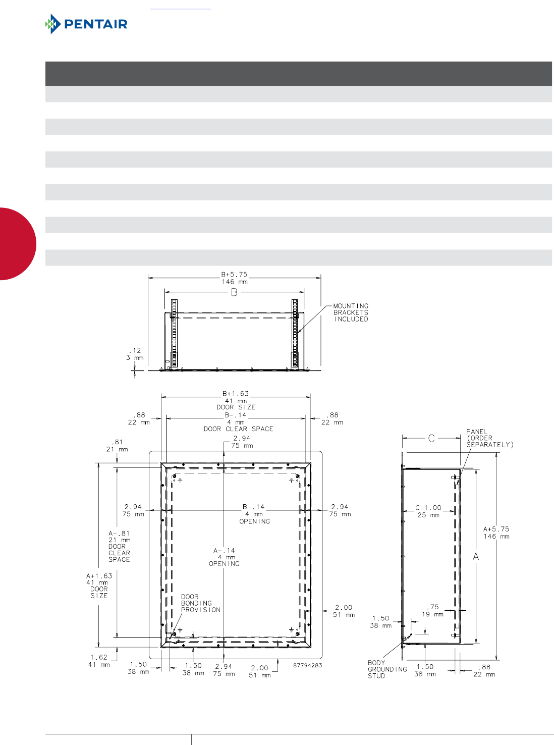
MOUNTING SYSTEM
Adjustable-depth mounting system is included with each enclosure.
Mounting system can be used on either block or stud walls.
Industrial+Automation+Supply!–!www.iasinc.com!,!Tel:!800,736,2345!

EQUIPMENT PROTECTIONSUBJECT TO CHANGE WITHOUT NOTICESTAINLESS STEEL142
2
INSTRUMENTATION ENCLOSURES AND ACCESSORIES inline™ instrumentation enClosures
INSTRUMENTATION ENCLOSURES AND ACCESSORIES
INLINE™ INSTRUMENTATION ENCLOSURES
INLINE™, TYPE 4X
INDUSTRY STANDARDS
Mounting brackets required to meet UL/CSA external mounting
requirements.
UL 508A Listed; Type 4, 4X, 12; File No. E61997
NEMA/EEMAC Type 4, 4X, 12
CSA File No. 42186: Type 4, 4X, 12
IEC 60529, IP66
APPLICATION
Aesthetic styling, flush latches and an attractive, stroked finish
make INLINE™ Enclosures an excellent choice when style and
functionality are important. INLINE Enclosures have an outward
formed body flange to prevent contaminants from entering the
enclosure and are available in three cover styles: hinged window
door, hinged solid door and solid screw cover.
SPECIFICATIONS
• 16 gauge covers and doors and 14 gauge bodies; Type 304 or 316L
stainless steel
• Seams continuously welded and ground smooth
• External formed body flange trough
• Large perimeter body opening
• Fastening holes in back of body for direct mounting or optional
external mounting brackets
• Seamless foam-in-place gasket
• M6 bonding provision on cover, M6 ground stud in body
• Furnished hardware kit includes panel mounting screws,
grounding hardware and sealing washers for wall-mounting
holes
INLINE Screw-Cover Enclosures
• Captivated Type 316 stainless steel cover screws with sealing
bushings made of a durable composite material
• Integral compression stops maintain optimal gasket compression
INLINE Hinged-Door Enclosures
• 180-degree door opening
• Removable Type 316 stainless steel hinge pins
• Standard self-grounding, slotted, quarter-turn Type 316 stainless
steel latch system with double seal
INLINE Window-Door Enclosures
• 3/16-in. (4.8-mm) clear polycarbonate window is mounted flush
with cover surface
• 180-degree door opening
• Removable Type 316 stainless steel hinge pins
• Standard self-grounding, slotted, quarter-turn Type 316 stainless
steel latch system with double seal
FINISH
Cover and body have smooth #4 brushed finish.
ACCESSORIES
See also Accessories.
DIN Rail or Panel Mounting Brackets
DIN3 Type Rails
Key Inserts
Mounting Bracket Kit
INLINE™ Panels
Wing Knob Latch
MODIFICATION AND CUSTOMIZATION
Hoffman excels at modifying and customizing products to your
specifications. Contact your local Hoffman sales office or distributor
for complete information.
BULLETIN: A54S
Industrial+Automation+Supply!–!www.iasinc.com!,!Tel:!800,736,2345!

PH 763.422.2211 • FAX 763.422.2600 • PENTAIRPROTECT.COMEQUIPMENT PROTECTION STAINLESS STEEL 143
2
INSTRUMENTATION ENCLOSURES AND ACCESSORIES inline™ instrumentation enClosures
Standard Product Screw-Cover
Catalog Number AxBxC in./mm
Stainless
Steel Type
Steel
Panel
Conductive
Panel
Panel Size
D x E
mm/in.
Mounting
G x H
mm/in.
F
mm/in.
LSC151512SS 5.91 x 5.91 x 4.72
150 x 150 x 120
304 LP1515 LP1515G 131 x 131
5.16 x 5.16
132 x 85
5.18 x 3.36
105
4.13
LSC151512SS6 5.91 x 5.91 x 4.72
150 x 150 x 120
316L LP1515 LP1515G 131 x 131
5.16 x 5.16
132 x 85
5.18 x 3.36
105
4.13
LSC201512SS 7.87 x 5.91 x 4.72
200 x 150 x 120
304 LP2015 LP2015G 181 x 131
7.13 x 5.16
182 x 85
7.15 x 3.35
105
4.13
LSC201512SS6 7.87 x 5.91 x 4.72
200 x 150 x 120
316L LP2015 LP2015G 181 x 131
7.13 x 5.16
182 x 85
7.15 x 3.35
105
4.13
LSC252015SS 9.84 x 7.87 x 5.91
250 x 200 x 150
304 LP2520 LP2520G 231 x 181
9.09 x 7.13
232 x 135
9.12 x 5.33
135
5.31
LSC252015SS6 9.84 x 7.87 x 5.91
250 x 200 x 150
316L LP2520 LP2520G 231 x 181
9.09 x 7.13
232 x 135
9.12 x 5.33
135
5.31
LSC302515SS 11.81 x 9.84 x 5.91
300 x 250 x 150
304 LP3025 LP3025G 281 x 231
11.06 x 9.09
281 x 185
11.08 x 7.30
135
5.31
LSC302515SS6 11.81 x 9.84 x 5.91
300 x 250 x 150
316L LP3025 LP3025G 281 x 231
11.06 x 9.09
281 x 185
11.08 x 7.30
135
5.31
LSC353020SS 13.78 x 11.81 x 7.87
350 x 300 x 200
304 LP3530 LP3530G 331 x 281
13.03 x 11.06
331 x 235
13.05 x 9.27
185
7.28
LSC353020SS6 13.78 x 11.81 x 7.87
350 x 300 x 200
316L LP3530 LP3530G 331 x 281
13.03 x 11.06
331 x 235
13.05 x 9.27
185
7.28
Purchase panels separately.
Catalog numbers ending in 6 are Type 316L stainless steel.
,1/,1(6WDLQOHVV6WHHO6FUHZ&RYHU(QFORVXUH
1RWHV
3DQHOVDUHPPJDXJHVWHHORUFRQGXFWLYHVWHHO
3DQHOVFUHZVDUH0SDQKHDG
5HDUPRXQWLQJKROHVZLOODFFRPPRGDWH0RU81&
PRXQWLQJVFUHZVVXSSOLHGE\FXVWRPHU
Industrial+Automation+Supply!–!www.iasinc.com!,!Tel:!800,736,2345!

EQUIPMENT PROTECTIONSUBJECT TO CHANGE WITHOUT NOTICESTAINLESS STEEL144
2
INSTRUMENTATION ENCLOSURES AND ACCESSORIES inline™ instrumentation enClosures
Standard Product Hinged-Cover
Catalog Number AxBxC in./mm
Stainless
Steel Type
Steel
Panel
Conductive
Panel
Panel Size
D x E
in./mm
Mounting
G x H
mm/in.
F
in./mm
LHC151512SS 5.91 x 5.91 x 4.72
150 x 150 x 120
304 LP1515 LP1515G 5.16 x 5.16
131 x 131
132 x 85
5.18 x 3.36
4.13
105
LHC151512SS6 5.91 x 5.91 x 4.72
150 x 150 x 120
316L LP1515 LP1515G 5.16 x 5.16
131 x 131
132 x 85
5.18 x 3.36
4.13
105
LHC201512SS 7.87 x 5.91 x 4.72
200 x 150 x 120
304 LP2015 LP2015G 7.13 x 5.16
181 x 131
182 x 85
7.15 x 3.36
4.13
105
LHC201512SS6 7.87 x 5.91 x 4.72
200 x 150 x 120
316L LP2015 LP2015G 7.13 x 5.16
181 x 131
182 x 85
7.15 x 3.36
4.13
105
LHC252015SS 9.84 x 7.87 x 5.91
250 x 200 x 150
304 LP2520 LP2520G 9.09 x 7.13
231 x 181
232 x 135
9.12 x 5.33
5.31
135
LHC252015SS6 9.84 x 7.87 x 5.91
250 x 200 x 150
316L LP2520 LP2520G 9.09 x 7.13
231 x 181
232 x 135
9.12 x 5.33
5.31
135
LHC302515SS 11.81 x 9.84 x 5.91
300 x 250 x 150
304 LP3025 LP3025G 11.06 x 9.09
281 x 231
281 x 185
11.08 x 7.30
5.31
135
LHC302515SS6 11.81 x 9.84 x 5.91
300 x 250 x 150
316L LP3025 LP3025G 11.06 x 9.09
281 x 231
281 x 185
11.08 x 7.30
5.31
135
LHC353020SS 13.78 x 11.81 x 7.87
350 x 300 x 200
304 LP3530 LP3530G 13.03 x 11.06
331 x 281
331 x 235
13.05 x 9.27
7.28
185
LHC353020SS6 13.78 x 11.81 x 7.87
350 x 300 x 200
316L LP3530 LP3530G 13.03 x 11.06
331 x 281
331 x 235
13.05 x 9.27
7.28
185
Purchase panels separately.
Catalog numbers ending in 6 are Type 316L stainless steel.
,1/,1(6WDLQOHVV6WHHO+LQJHG'RRUDQG:LQGRZ'RRU(QFORVXUH
1RWH+LQJHGRQಯ%ರVLGHRIHQFORVXUH
ZKHQ% PPRUPP
Industrial+Automation+Supply!–!www.iasinc.com!,!Tel:!800,736,2345!

PH 763.422.2211 • FAX 763.422.2600 • PENTAIRPROTECT.COMEQUIPMENT PROTECTION STAINLESS STEEL 145
2
INSTRUMENTATION ENCLOSURES AND ACCESSORIES inline™ instrumentation enClosures
Standard Product Window-Door
Catalog Number AxBxC in./mm
Stainless
Steel Type
Steel
Panel
Conductive
Panel
Panel Size
D x E
in./mm
Mounting
G x H
mm/in.
Window Size
M x N
in./mm
F
in./mm
LWC201512SS 7.87 x 5.91 x 4.72
200 x 150 x 120
304 LP2015 LP2015G 7.13 x 5.16
181 x 131
182 x 85
7.15 x 3.36
5.87 x 2.56
149 x 65
3.98
101
LWC201512SS6 7.87 x 5.91 x 4.72
200 x 150 x 120
316L LP2015 LP2015G 7.13 x 5.16
181 x 131
182 x 85
7.15 x 3.36
5.87 x 2.56
149 x 65
3.98
101
LWC252015SS 9.84 x 7.87 x 5.91
250 x 200 x 150
304 LP2520 LP2520G 9.09 x 7.13
231 x 181
232 x 135
9.12 x 5.33
7.83 x 4.53
199 x 115
5.16
131
LWC252015SS6 9.84 x 7.87 x 5.91
250 x 200 x 150
316L LP2520 LP2520G 9.09 x 7.13
231 x 181
232 x 135
9.12 x 5.33
7.83 x 4.53
199 x 115
5.16
131
LWC302515SS 11.81 x 9.84 x 5.91
300 x 250 x 150
304 LP3025 LP3025G 11.06 x 9.09
281 x 231
281 x 185
11.08 x 7.30
9.80 x 6.50
249 x 165
5.16
131
LWC302515SS6 11.81 x 9.84 x 5.91
300 x 250 x 150
316L LP3025 LP3025G 11.06 x 9.09
281 x 231
281 x 185
11.08 x 7.30
9.80 x 6.50
249 x 165
5.16
131
LWC204015SS 7.87 x 15.75 x 5.91
200 x 400 x 150
304 LP2040 LP2040G 7.13 x 15.00
181 x 381
182 x 335
7.15 x 13.20
4.53 x 13.74
115 x 349
5.16
131
LWC204015SS6 7.87 x 15.75 x 5.91
200 x 400 x 150
316L LP2040 LP2040G 7.13 x 15.00
181 x 381
182 x 335
7.15 x 13.20
4.53 x 13.74
115 x 349
5.16
131
LWC206015SS 7.87 x 23.62 x 5.91
200 x 600 x 150
304 LP2060 LP2060G 7.13 x 22.87
181 x 581
182 x 535
7.15 x 21.08
4.53 x 21.61
115 x 549
5.16
131
LWC206015SS6 7.87 x 23.62 x 5.91
200 x 600 x 150
316L LP2060 LP2060G 7.13 x 22.87
181 x 581
182 x 535
7.15 x 21.08
4.53 x 21.61
115 x 549
5.16
131
Purchase panels separately.
Catalog numbers ending in 6 are Type 316L stainless steel.
,1/,1(6WDLQOHVV6WHHO+LQJHG'RRUDQG:LQGRZ'RRU(QFORVXUH
1RWH+LQJHGRQಯ%ರVLGHRIHQFORVXUH
ZKHQ% PPRUPP
Industrial+Automation+Supply!–!www.iasinc.com!,!Tel:!800,736,2345!

EQUIPMENT PROTECTIONSUBJECT TO CHANGE WITHOUT NOTICESTAINLESS STEEL146
2
INSTRUMENTATION ENCLOSURES AND ACCESSORIES inline™ landsCape instrumentation enClosures and aCCessories
INLINE™ LANDSCAPE INSTRUMENTATION ENCLOSURES AND ACCESSORIES
INLINE™ LANDSCAPE, TYPE 4X
INDUSTRY STANDARDS
UL 508A Listed; Type 4, 4X, 12; File Number E61997
cUL Listed per CSA C22.2 No 94; Type 4, 4X, 12; File Number
E61997
NEMA/EEMAC Type 4, 4X, 12
CSA File Number 42186: Type 4, 4X, 12
IEC 60529, IP66
APPLICATION
When applications require mounting electrical components the full
width of the enclosure, the landscape orientation of this aesthetic
INLINE™ Enclosure makes this possible. The full-width mounting
brackets can be drilled anywhere along their length, providing
maximum mounting flexibility.
SPECIFICATIONS
• 14 gauge Type 304 stainless steel body; 16 gauge Type 304
stainless steel door
• Seams continuously welded and ground smooth
• External formed body flange trough
• Large perimeter body opening
• Mounting brackets are spot-welded to top and bottom of
enclosure
• Mounting brackets have predrilled mounting holes; customer-
specific location holes can be drilled for mounting flexibility
• Seamless foam-in-place gasket
• M6 ground stud with base flange on body; M6 bonding provision
with base flange on door
• Furnished hardware kit includes panel mounting screws and
grounding hardware
• Hinged door with removable hinge pins and self-grounding
quarter-turn latch system with double seal
• Door opens 180 degrees
• Window door models include 3/16-in. (4.8-mm) clear
polycarbonate window mounted flush with door surface
FINISH
Type 304 stainless steel with #4 brushed finish. Back is not
brushed.
ACCESSORIES
See also Accessories.
Mounting Bracket Kit
Lock Inserts
Wing Knob Latch
Grounding Kit
DIN3 Type Rail
DIN Rail or Panel-Mounting Brackets
BULLETIN: A54S
Standard Product
Catalog Number AxBxC in./mm
Enclosure B
mm/in.
Window N
mm/in.
Mtg. Holes H
mm/in.
Mtg. Studs J
mm/in.
Clear Space Above Panel
mm/in.
LHC233116SS 9.06 x 12.20 x 6.10
230 x 310 x 155
310
12.21
—
—
281
11.08
265
10.45
140
5.51
LWC233116SS 9.06 x 12.20 x 6.10
230 x 310 x 155
310
12.21
259
10.20
281
11.08
265
10.45
140
5.51
LHC234616SS 9.06 x 18.11 x 6.10
230 x 460 x 155
460
18.11
—
—
431
16.99
416
16.36
140
5.51
LWC234616SS 9.06 x 18.11 x 6.10
230 x 460 x 155
460
18.11
409
16.11
431
16.99
416
16.36
140
5.51
LHC236016SS 9.06 x 23.62 x 6.10
230 x 600 x 155
600
23.62
—
—
571
22.50
556
21.88
140
5.51
LWC236016SS 9.06 x 23.62 x 6.10
230 x 600 x 155
600
23.62
549
21.62
571
22.50
556
21.88
140
5.51
LHC237716SS 9.06 x 30.31 x 6.10
230 x 770 x 155
770
30.32
—
—
741
29.19
726
28.57
140
5.51
LWC237716SS 9.06 x 30.31 x 6.10
230 x 770 x 155
770
30.32
719
28.31
741
29.19
726
28.57
140
5.51
LHC239316SS 9.06 x 36.61 x 6.10
230 x 930 x 155
925
36.42
—
—
896
35.29
881
34.67
140
5.51
LWC239316SS 9.06 x 36.61 x 6.10
230 x 930 x 155
925
36.42
874
34.42
896
35.29
881
34.67
140
5.51
Industrial+Automation+Supply!–!www.iasinc.com!,!Tel:!800,736,2345!

PH 763.422.2211 • FAX 763.422.2600 • PENTAIRPROTECT.COMEQUIPMENT PROTECTION STAINLESS STEEL 147
2
INSTRUMENTATION ENCLOSURES AND ACCESSORIES inline™ landsCape instrumentation enClosures and aCCessories
INLINE™ LANDSCAPE PANELS
Panels are 12 gauge steel with a white polyester powder paint or
conductive finish. They include a labeled ground hole sized for an
M6 screw. Panels mount on studs provided in the enclosure or to
optional DIN mounting brackets.
BULLETIN: A54P
Catalog Number
Conductive
Panel
Panel Size
D x E (mm)
Panel Size
D x E (in.)
LP2331 LP2331G 211 x 291 8.31 x 11.46
LP2346 LP2346G 211 x 441 8.31 x 17.36
LP2360 LP2360G 211 x 581 8.31 x 22.87
LP2377 LP2377G 211 x 751 8.31 x 29.57
LP2393 LP2393G 211 x 906 8.31 x 35.67
OPTIONAL COMPONENTS SELECTION GUIDE
Use the table to assist with selection of the optional components for the appropriate INLINE enclosure.
BULLETIN: A54S
Catalog Number AxBxC in. AxBxC mm
Solid or Window
Cover Enclosure Panel Conductive DIN Rail
DIN Rail or Panel
Mounting Bracket
LHC233116SS 9.06 x 12.20 x 6.10 230 x 310 x 155 Solid Cover LP2331 LP2331G LDR3P31 LMK23
LWC233116SS 9.06 x 12.20 x 6.10 230 x 310 x 155 Window Cover LP2331 LP2331G LDR3P31 LMK23
LHC234616SS 9.06 x 18.11 x 6.10 230 x 460 x 155 Solid Cover LP2346 LP2346G LDR3P46 LMK23
LWC234616SS 9.06 x 18.11 x 6.10 230 x 460 x 155 Window Cover LP2346 LP2346G LDR3P46 LMK23
LHC236016SS 9.06 x 23.62 x 6.10 230 x 600 x 155 Solid Cover LP2360 LP2360G LDR3P60 LMK23
LWC236016SS 9.06 x 23.62 x 6.10 230 x 600 x 155 Window Cover LP2360 LP2360G LDR3P60 LMK23
LHC237716SS 9.06 x 30.31 x 6.10 230 x 770 x 155 Solid Cover LP2377 LP2377G LDR3P77 LMK23
LWC237716SS 9.06 x 30.31 x 6.10 230 x 770 x 155 Window Cover LP2377 LP2377G LDR3P77 LMK23
LHC239316SS 9.06 x 36.61 x 6.10 230 x 930 x 155 Solid Cover LP2393 LP2393G LDR3P93 LMK23
LWC239316SS 9.06 x 36.61 x 6.10 230 x 930 x 155 Window Cover LP2393 LP2393G LDR3P93 LMK23
600-mm and longer enclosures require two sets of brackets for mounting panels.
Industrial+Automation+Supply!–!www.iasinc.com!,!Tel:!800,736,2345!

EQUIPMENT PROTECTIONSUBJECT TO CHANGE WITHOUT NOTICESTAINLESS STEEL148
2
CONSOLETS Consolets
CONSOLETS
CONSOLETS
CONSOLETS, TYPE 12
INDUSTRY STANDARDS
UL 508A Listed; Type 12, 13; File Number E61997
cUL Listed per CSA C22.2 No 94; Type 12, 13; File Number E61997
NEMA/EEMAC Type 12
CSA File Number 42186: Type 12
IEC 60529, IP65
APPLICATION
Consolets are ideal for mounting small control or instrumentation
devices where the desirable access requires a 30- or 60-degree
surface. These enclosures can be mounted on either of two sides for
placement on desktops, pedestals or other flat surfaces.
See the HMI chapter for related mild steel consolets.
SPECIFICATIONS
• Type 304 stainless steel
• Seams continuously welded and ground smooth
• Captivated cover screws thread into sealed wells
• Cover attached with continuous hinge
• Oil-resistant gasket
• Bonding provision on door
FINISH
Cover and sides of body have smooth #4 brushed finish.
ACCESSORIES
See also Accessories.
Industrial Corrosion Inhibitors
Steel and Stainless Steel Window Kits
MODIFICATION AND CUSTOMIZATION
Hoffman excels at modifying and customizing products to your
specifications. Contact your local Hoffman sales office or distributor
for complete information.
BULLETIN: C5S
Standard Product
Catalog Number AxBxC in./mm
E
in./mm
H
in./mm
J
in./mm
K
in./mm
L
in./mm
N
in./mm
C8C8SS 8.00 x 8.00 x 7.09
203 x 203 x 180
5.62
143
8.28
210
8.28
210
7.50
191
6.62
168
7.44
189
C8C12SS 8.00 x 12.00 x 7.09
203 x 305 x 180
5.62
143
8.28
210
12.28
312
11.50
292
6.62
168
7.44
189
C8C16SS 8.00 x 16.00 x 7.09
203 x 406 x 180
5.62
143
8.28
210
16.28
414
15.50
394
6.62
168
7.44
189
C8C20SS 8.00 x 20.00 x 7.09
203 x 508 x 180
5.62
143
8.28
210
20.28
515
19.50
495
6.62
168
7.44
189
C12C12SS 12.00 x 12.00 x 9.09
305 x 305 x 231
7.62
194
12.28
312
12.28
312
11.50
292
10.62
270
10.91
277
C12C16SS 12.00 x 16.00 x 9.09
305 x 406 x 231
7.62
194
12.28
312
16.28
414
15.50
394
10.62
270
10.91
277
C12C20SS 12.00 x 20.00 x 9.09
305 x 508 x 231
7.62
194
12.28
312
20.28
515
19.50
495
10.62
270
10.91
277
C12C24SS 12.00 x 24.00 x 9.09
305 x 610 x 231
7.62
194
12.28
312
24.28
617
23.50
597
10.62
270
10.91
277
C16C16SS 16.00 x 16.00 x 11.09
406 x 406 x 282
9.62
244
16.28
414
16.28
414
15.50
394
14.62
371
14.38
365
C16C20SS 16.00 x 20.00 x 11.09
406 x 508 x 282
9.62
244
16.28
414
20.28
515
19.50
495
14.62
371
14.38
365
C16C24SS 16.00 x 24.00 x 11.09
406 x 610 x 282
9.62
244
16.28
414
24.28
617
23.50
597
14.62
371
14.38
365
C16C30SS 16.00 x 30.00 x 11.09
406 x 762 x 282
9.62
244
16.28
414
30.28
769
29.50
749
14.62
371
14.38
365
C16C36SS 16.00 x 36.00 x 11.09
406 x 914 x 282
9.62
244
16.28
414
36.28
922
35.50
902
14.62
371
14.38
365
C20C20SS 20.00 x 20.00 x 13.09
508 x 508 x 332
11.62
295
20.28
515
20.28
515
18.62
473
18.62
473
17.84
453
C20C24SS 20.00 x 24.00 x 13.09
508 x 610 x 332
11.62
295
20.28
515
24.28
617
22.62
575
18.62
473
17.84
453
C20C30SS 20.00 x 30.00 x 13.09
508 x 762 x 332
11.62
295
20.28
515
30.28
769
28.62
727
18.62
473
17.84
453
Industrial+Automation+Supply!–!www.iasinc.com!,!Tel:!800,736,2345!

EQUIPMENT PROTECTIONSUBJECT TO CHANGE WITHOUT NOTICESTAINLESS STEEL150
2
PUSHBUTTON ENCLOSURES pusHbutton enClosures
PUSHBUTTON ENCLOSURES
PUSHBUTTON ENCLOSURES
EXTRADEEP 30.5MM PUSHBUTTON ENCLOSURES, TYPE 4X
INDUSTRY STANDARDS
UL 508A Listed; Type 4, 4X, 12; File Number E61997
cUL Listed per CSA C22.2 No 94; Type 4, 4X, 12; File Number
E61997
NEMA/EEMAC Type 4X, 12, 13
CSA File Number 42186: Type 4, 4X, 12
IEC 60529, IP66
APPLICATION
Designed to house 30.5-mm oil-tight pushbuttons, switches and
pilot lights. Enclosures provide protection against dirt, dust, oil and
water. Extra-deep design accommodates additional contact blocks
for pushbuttons.
See Mild Steel chapter for related mild steel enclosures.
SPECIFICATIONS
• 14 gauge bodies, 16 gauge covers; Type 304 or Type 316 stainless
steel
• Seams continuously welded and ground smooth
• Captivated cover screws thread into sealed wells
• Bonding provision on door; grounding nut on body
• 4-way pushbutton holes accept all brands of oil-tight
pushbuttons, switches and pilot lights
• Enclosures 6.00 x 4.00 x 4.75 in. (152 x 102 x 121 mm) and larger
have internal detachable hinge to hold cover open during wiring,
yet permit immediate removal
• Oil-resistant gasket
FINISH
Cover and sides of body have smooth #4 brushed finish.
ACCESSORIES
See also Accessories.
Industrial Corrosion Inhibitors
HOL-SEALERSTM Hole Seals
Tamper-Resistant Screws
BULLETIN: PB1S
Standard Product
Catalog Number AxBxC in./mm
Stainless
Steel
Type Gauge
Number
of Holes
Mounting
G x H
in./mm
Overall
L x W
in./mm
T
in./mm
Y
in./mm
E1PBXSS 4.00 x 4.00 x 4.75
102 x 102 x 121
304 16 1 4.50 x 3.12
114 x 79
5.00 x 4.22
127 x 107
3.75
95
2.11
54
E2PBXSS 6.00 x 4.00 x 4.75
152 x 102 x 121
304 14 2 6.50 x 3.12
165 x 79
7.00 x 4.22
178 x 107
3.75
95
1.98
50
E3PBXSS 8.00 x 4.00 x 4.75
203 x 102 x 121
304 14 3 8.50 x 3.12
216 x 79
9.00 x 4.22
229 x 107
3.75
95
1.86
47
E4PBXSS 10.00 x 4.00 x 4.75
254 x 102 x 121
304 14 4 10.50 x 3.12
267 x 79
11.00 x 4.22
279 x 107
3.75
95
1.73
44
E16PBXSS 11.75 x 10.75 x 4.75
298 x 273 x 121
304 14 16 12.25 x 9.88
311 x 251
12.75 x 10.97
324 x 279
10.50
267
2.61
66
E16PBXSS6 11.75 x 10.75 x 4.75
298 x 273 x 121
316 14 16 12.25 x 9.88
311 x 251
12.75 x 10.97
324 x 279
10.50
267
2.61
66
Catalog number ending in 6 is Type 316L stainless steel.
Industrial+Automation+Supply!–!www.iasinc.com!,!Tel:!800,736,2345!

EQUIPMENT PROTECTIONSUBJECT TO CHANGE WITHOUT NOTICESTAINLESS STEEL152
2
PUSHBUTTON ENCLOSURES pusHbutton enClosures
EXTRADEEP 22.5MM PUSHBUTTON ENCLOSURES, TYPE 4X
INDUSTRY STANDARDS
UL 508A Listed; Type 4, 4X, 12; File Number E61997
cUL Listed per CSA C22.2 No 94; Type 4, 4X, 12; File Number
E61997
NEMA/EEMAC Type 4X, 12, 13
CSA File Number 42186: Type 4, 4X, 12
IEC 60529, IP66
APPLICATION
Designed to house 22.5-mm oil-tight pushbuttons, switches and
pilot lights. Enclosures provide protection against dust, dirt, oil and
water. Extra-deep design accommodates additional contact blocks
for pushbuttons.
SPECIFICATIONS
• Type 304 stainless steel
• Seams continuously welded and ground smooth
• Captivated stainless steel cover screws thread into sealed wells
• Enclosures 8.50 x 4.00 x 4.75 in. (216 x 102 x 121 mm) and larger
have internal detachable hinge to hold cover open during wiring,
yet permit immediate removal
• Bonding provision on door; grounding nut on body
• Oil-resistant gasket
FINISH
Covers and sides of body have a smooth #4 brushed finish.
ACCESSORIES
See also Accessories.
Industrial Corrosion Inhibitors, page 1248
HOL-SEALERSTM Hole Seals
Tamper-Resistant Screws
BULLETIN: PB1S
Standard Product
Catalog Number AxBxC in./mm Body Gauge Cover Gauge Holes
Mounting
G x H
in./mm
Overall
L x W
in./mm
F
in./mm
K
in./mm
M
in./mm
T
in./mm
V
in./mm
Y
in./mm
E1PBGXSS 4.00 x 4.00 x 4.75
102 x 102 x 121
16 16 1 4.50 x 3.13
114 x 80
5.00 x 4.22
127 x 107
3.75
95
2.00
51
4.18
106
3.75
95
5.00
127
—
—
E2PBGXSS 6.00 x 4.00 x 4.75
152 x 102 x 121
14 16 2 6.50 x 3.13
165 x 80
7.00 x 4.22
178 x 107
3.75
95
4.00
102
6.18
157
3.75
95
5.00
127
1.98
50
E3PBGXSS 8.00 x 4.00 x 4.75
203 x 102 x 121
14 16 3 8.50 x 3.13
216 x 80
9.00 x 4.22
229 x 107
3.75
95
6.00
152
8.18
208
3.75
95
5.00
127
1.86
47
E4PBGXSS 10.00 x 4.00 x 4.75
254 x 102 x 121
14 16 4 10.50 x 3.13
267 x 80
11.00 x 4.22
270 x 107
3.75
95
8.00
203
10.18
259
3.75
95
5.00
127
1.73
44
Industrial+Automation+Supply!–!www.iasinc.com!,!Tel:!800,736,2345!

EQUIPMENT PROTECTIONSUBJECT TO CHANGE WITHOUT NOTICESTAINLESS STEEL154
2
PUSHBUTTON ENCLOSURES pusHbutton enClosures
30.5MM AND 22.5MM PUSHBUTTON ENCLOSURES, TYPE 4X
INDUSTRY STANDARDS
UL 508A Listed; Type 4, 4X, 12; File Number E61997
cUL Listed per CSA C22.2 No 94; Type 4, 4X, 12; File Number
E61997
NEMA/EEMAC Type 4X, 12, 13
CSA File Number 42186: Type 4, 4X, 12
IEC 60529, IP66
APPLICATION
Punched specifically to house either 30.5-mm or 22.5-mm oil-
tight pushbuttons, switches and pilot lights. Enclosures provide
protection against dirt, dust, oil and water.
See Mild Steel chapter for related mild steel enclosures.
SPECIFICATIONS
• 14 gauge bodies, 16 gauge covers; Type 304 or Type 316 stainless
steel
• Seams continuously welded and ground smooth
• Captivated cover screws thread into sealed wells
• Bonding provision on door; grounding nut on body
• 4-way pushbutton holes accept all brands of oil-tight
pushbuttons, switches and pilot lights
• Enclosures with more than one column of pushbutton holes have
internal detachable hinge to hold cover open during wiring, yet
permit immediate removal
• Oil-resistant gasket
FINISH
Cover and sides of body have smooth #4 brushed finish.
ACCESSORIES
See also Accessories.
Industrial Corrosion Inhibitors, page 1248
HOL-SEALERSTM Hole Seals
Tamper-Resistant Screws
BULLETIN: PB1S
Standard Product
Catalog Number AxBxC in./mm Hole Size Stainless Steel Type Gauge Number of Holes
Mounting
G x H
in./mm
Overall
L x W
in./mm
J
in./mm
T
in./mm
X
in./mm
Y
in./mm
E1PBSS 3.50 x 4.25 x 2.75
89 x 108 x 70
30.5 mm Type 304 16 1 4.00 x 2.38
102 x 60
4.50 x 3.47
114 x 88
2.31
59
3.00
76
1.73
47
1.86
47
E1PBSS6 3.50 x 4.25 x 2.75
89 x 108 x 70
30.5 mm Type 316 16 1 4.00 x 2.38
102 x 60
4.50 x 3.47
114 x 88
2.31
59
3.00
76
1.73
47
1.86
47
E1PBGSS 3.50 x 4.25 x 2.75
89 x 108 x 70
22.5 mm Type 304 16 1 4.00 x 2.38
102 x 60
4.50 x 3.47
114 x 88
2.31
59
3.00
76
1.73
47
1.86
47
E2PBSS 5.75 x 3.25 x 2.75
146 x 83 x 70
30.5 mm Type 304 16 2 6.25 x 2.38
159 x 60
6.75 x 3.47
171 x 88
2.31
59
3.00
76
1.73
44
1.86
47
E2PBSS6 5.75 x 3.25 x 2.75
146 x 83 x 70
30.5 mm Type 316 16 2 6.25 x 2.38
159 x 60
6.75 x 3.47
171 x 88
2.31
59
3.00
76
1.73
44
1.86
47
E2PBGSS 5.75 x 3.25 x 2.75
146 x 83 x 70
22.5 mm Type 304 16 2 6.25 x 2.38
159 x 60
6.75 x 3.47
171 x 88
2.31
59
3.00
76
1.73
44
1.86
47
E3PBSS 8.00 x 3.25 x 2.75
203 x 83 x 70
30.5 mm Type 304 14 3 8.50 x 2.38
216 x 60
9.00 x 3.47
229 x 88
2.31
59
3.00
76
1.73
44
1.86
47
E3PBSS6 8.00 x 3.25 x 2.75
203 x 83 x 70
30.5 mm Type 316 14 3 8.50 x 2.38
216 x 60
9.00 x 3.47
229 x 88
2.31
59
3.00
76
1.73
44
1.86
47
E3PBGSS 8.00 x 3.25 x 2.75
203 x 83 x 70
22.5 mm Type 304 14 3 8.50 x 2.38
216 x 60
9.00 x 3.47
229 x 88
2.31
59
3.00
76
1.73
44
1.86
47
E4PBSS 10.00 x 3.25 x 2.75
254 x 83 x 70
30.5 mm Type 304 14 4 10.75 x 2.38
273 x 60
11.25 x 3.47
286 x 88
2.31
59
3.00
76
1.73
44
1.86
47
E4PBSS6 10.00 x 3.25 x 2.75
254 x 83 x 70
30.5 mm Type 316 14 4 10.75 x 2.38
273 x 60
11.25 x 3.47
286 x 88
2.31
59
3.00
76
1.73
44
1.86
47
E4PBGSS 10.00 x 3.25 x 2.75
254 x 83 x 70
22.5 mm Type 304 14 4 10.75 x 2.38
273 x 60
11.25 x 3.47
286 x 88
2.31
59
3.00
76
1.73
44
1.86
47
E6PBSS 9.50 x 6.25 x 3.00
241 x 159 x 76
30.5 mm Type 304 14 6 10.00 x 5.38
254 x 137
10.50 x 6.47
267 x 164
2.56
65
6.00
152
2.11
54
2.61
66
E6PBSS6 9.50 x 6.25 x 3.00
241 x 159 x 76
30.5 mm Type 316 14 6 10.00 x 5.38
254 x 137
10.50 x 6.47
267 x 164
2.56
65
6.00
152
2.11
54
2.61
66
E6PBGSS 9.50 x 6.25 x 3.00
241 x 159 x 76
22.5 mm Type 304 14 6 10.00 x 5.38
254 x 137
10.50 x 6.47
267 x 164
2.56
65
6.00
152
2.11
54
2.61
66
E9PBSS 9.50 x 8.50 x 3.00
241 x 216 x 76
30.5 mm Type 304 14 9 10.00 x 7.62
254 x 194
10.50 x 8.72
267 x 221
2.56
65
8.25
210
2.11
54
2.61
66
E9PBSS6 9.50 x 8.50 x 3.00
241 x 216 x 76
30.5 mm Type 316 14 9 10.00 x 7.62
254 x 194
10.50 x 8.72
267 x 221
2.56
65
8.25
210
2.11
54
2.61
66
Industrial+Automation+Supply!–!www.iasinc.com!,!Tel:!800,736,2345!

PH 763.422.2211 • FAX 763.422.2600 • PENTAIRPROTECT.COMEQUIPMENT PROTECTION STAINLESS STEEL 155
2
PUSHBUTTON ENCLOSURES pusHbutton enClosures
Catalog Number AxBxC in./mm Hole Size Stainless Steel Type Gauge Number of Holes
Mounting
G x H
in./mm
Overall
L x W
in./mm
J
in./mm
T
in./mm
X
in./mm
Y
in./mm
E9PBGSS 9.50 x 8.50 x 3.00
241 x 216 x 76
22.5 mm Type 304 14 9 10.00 x 7.62
254 x 194
10.50 x 8.72
267 x 221
2.56
65
8.25
210
2.11
54
2.61
66
E12PBSS 11.75 x 8.50 x 3.00
298 x 216 x 76
30.5 mm Type 304 14 12 12.25 x 7.62
311 x 194
12.75 x 8.72
324 x 221
2.56
65
8.25
210
2.11
54
2.61
66
E12PBSS6 11.75 x 8.50 x 3.00
298 x 216 x 76
30.5 mm Type 316 14 12 12.25 x 7.62
311 x 194
12.75 x 8.72
324 x 221
2.56
65
8.25
210
2.11
54
2.61
66
E12PBGSS 11.75 x 8.50 x 3.00
298 x 216 x 76
22.5 mm Type 304 14 12 12.25 x 7.62
311 x 194
12.75 x 8.72
324 x 221
2.56
65
8.25
210
2.11
54
2.61
66
Catalog number ending in 6 is Type 316L stainless steel.
Industrial+Automation+Supply!–!www.iasinc.com!,!Tel:!800,736,2345!

EQUIPMENT PROTECTIONSUBJECT TO CHANGE WITHOUT NOTICESTAINLESS STEEL156
2
WALLMOUNT ENCLOSURES ConCept™ Wall-mount enClosures
WALL-MOUNT ENCLOSURES
CONCEPT™ WALL-MOUNT ENCLOSURES
CONCEPT™, TYPE 4X
INDUSTRY STANDARDS
Mounting brackets required to meet UL/CSA external mounting
requirements.
UL 508A Listed; Type 3R, 4, 4X, 12; File No. E61997
cUL Listed per CSA C22.2 No 94; Type 3R, 4, 4X, 12; File No.
E61997
NEMA/EEMAC Type 3R, 4, 4X, 12, 13
CSA File No. 42186: Type 4, 4X, 12
VDE IP66
IEC 60529, IP66
Meets NEMA Type 3RX requirements
APPLICATION
For indoor or outdoor applications that require corrosion protection
from chemicals and water. CONCEPT™ Enclosures feature
streamlined styling with an attractive stroked finish and flush
quarter-turn latches for secure closure. Available in solid- and
window-door models.
SPECIFICATIONS
• Manufactured from Type 304 or Type 316L stainless steel
• Minimum-width body flange provides maximum body opening
• External formed 90-degree body flange
• Panel mounting studs fit optional CONCEPT panels and other
accessories
• Mounting holes in back of body for direct mounting or for optional
external mounting brackets
• Type 316 stainless steel hidden hinges promote clean aesthetic
appearance
• Corner formed doors are interchangeable and easily removed by
pulling clip-style hinge pins
• Provision on door (except window-door style and when B = 12 in.)
for thermoplastic data pocket
• Provision on door (except window-door style and when B = 12 in.)
for optional doorstop kit
• Quarter-turn latches furnished with flush slotted insert
• Seamless foam-in-place gasket
• Self-grounding latch system with double seal
• Bonding provision on door; grounding stud on body
• Furnished hardware kit consists of panel-mounting nuts, panel-
grounding hardware and sealing washers for wall-mounting
holes
• Installation instructions
• Window doors have a clear polycarbonate window
FINISH
Door and body have smooth #4 brushed finish.
ACCESSORIES
See also Accessories.
Type 316 Stainless Steel Door Stop Kit
CONCEPT™ Panels
H2OMIT™ Vent Drains, Type 4X
H2OMIT™ Thermoelectric Dehumidifier
Handles
Lock Inserts
See also the Popular Cooling Products and Accessories tables following
the Standard Products tables.
MODIFICATION AND CUSTOMIZATION
Hoffman excels at modifying and customizing products to your
specifications. Contact your local Hoffman sales office or distributor
for complete information.
BULLETIN: CWS
Standard Product One-Door
Catalog Number AxBxC in. AxBxC mm
Door
Gauge
Body
Gauge Panel
Conductive
Panel
Panel Size
D x E (in.)
Panel Size
D x E (mm)
Mounting
G x H (in.)
Mounting
G x H (mm)
Latches
Qty. Style J (in.) J (mm)
CSD12126SS 12.00 x 12.00 x 6.00 305 x 305 x 152 16 16 CP1212 CP1212G 10.20 x 10.20 259 x 259 10.50 x 10.50 267 x 267 1 Quarter-turn 6.00 152
CSD12126SS6 12.00 x 12.00 x 6.00 305 x 305 x 152 16 16 CP1212 CP1212G 10.20 x 10.20 259 x 259 10.50 x 10.50 267 x 267 1 Quarter-turn 6.00 152
CSD16126SS 16.00 x 12.00 x 6.00 406 x 305 x 152 16 16 CP1612 CP1612G 14.20 x 10.20 361 x 259 14.50 x 10.50 368 x 267 1 Quarter-turn 8.00 203
CSD16126SS6 16.00 x 12.00 x 6.00 406 x 305 x 152 16 16 CP1612 CP1612G 14.20 x 10.20 361 x 259 14.50 x 10.50 368 x 267 1 Quarter-turn 8.00 203
CSD16166SS 16.00 x 16.00 x 6.00 406 x 406 x 152 16 16 CP1616 CP1616G 14.20 x 14.20 361 x 361 14.50 x 14.50 368 x 368 1 Quarter-turn 8.00 203
CSD16166SS6 16.00 x 16.00 x 6.00 406 x 406 x 152 16 16 CP1616 CP1616G 14.20 x 14.20 361 x 361 14.50 x 14.50 368 x 368 1 Quarter-turn 8.00 203
CSD20166SS 20.00 x 16.00 x 6.00 508 x 406 x 152 16 16 CP2016 CP2016G 18.20 x 14.20 462 x 361 18.50 x 14.50 470 x 368 1 Quarter-turn 10.00 254
CSD20166SS6 20.00 x 16.00 x 6.00 508 x 406 x 152 16 16 CP2016 CP2016G 18.20 x 14.20 462 x 361 18.50 x 14.50 470 x 368 1 Quarter-turn 10.00 254
CSD20206SS 20.00 x 20.00 x 6.00 508 x 508 x 152 16 16 CP2020 CP2020G 18.20 x 18.20 462 x 462 18.50 x 18.50 470 x 470 1 Quarter-turn 10.00 254
CSD20206SS6 20.00 x 20.00 x 6.00 508 x 508 x 152 16 16 CP2020 CP2020G 18.20 x 18.20 462 x 462 18.50 x 18.50 470 x 470 1 Quarter-turn 10.00 254
CSD16128SS 16.00 x 12.00 x 8.00 406 x 305 x 203 16 16 CP1612 CP1612G 14.20 x 10.20 361 x 259 14.50 x 10.50 368 x 267 1 Quarter-turn 8.00 203
CSD16128SS6 16.00 x 12.00 x 8.00 406 x 305 x 203 16 16 CP1612 CP1612G 14.20 x 10.20 361 x 259 14.50 x 10.50 368 x 267 1 Quarter-turn 8.00 203
CSD16168SS 16.00 x 16.00 x 8.00 406 x 406 x 203 16 16 CP1616 CP1616G 14.20 x 14.20 361 x 361 14.50 x 14.50 368 x 368 1 Quarter-turn 8.00 203
CSD16168SS6 16.00 x 16.00 x 8.00 406 x 406 x 203 16 16 CP1616 CP1616G 14.20 x 14.20 361 x 361 14.50 x 14.50 368 x 368 1 Quarter-turn 8.00 203
CSD16208SS 16.00 x 20.00 x 8.00 406 x 508 x 203 16 16 CP2016 CP2016G 18.20 x 14.20 462 x 361 14.50 x 18.50 368 x 470 1 Quarter-turn 8.00 203
CSD16208SS6 16.00 x 20.00 x 8.00 406 x 508 x 203 16 16 CP2016 CP2016G 18.20 x 14.20 462 x 361 14.50 x 18.50 368 x 470 1 Quarter-turn 8.00 203
CSD20168SS 20.00 x 16.00 x 8.00 508 x 406 x 203 16 16 CP2016 CP2016G 18.20 x 14.20 462 x 361 18.50 x 14.50 470 x 368 1 Quarter-turn 10.00 254
CSD20168SS6 20.00 x 16.00 x 8.00 508 x 406 x 203 16 16 CP2016 CP2016G 18.20 x 14.20 462 x 361 18.50 x 14.50 470 x 368 1 Quarter-turn 10.00 254
CSD20208SS 20.00 x 20.00 x 8.00 508 x 508 x 203 16 16 CP2020 CP2020G 18.20 x 18.20 462 x 462 18.50 x 18.50 470 x 470 1 Quarter-turn 10.00 254
CSD20208SS6 20.00 x 20.00 x 8.00 508 x 508 x 203 16 16 CP2020 CP2020G 18.20 x 18.20 462 x 462 18.50 x 18.50 470 x 470 1 Quarter-turn 10.00 254
CSD24168SS 24.00 x 16.00 x 8.00 610 x 406 x 203 16 16 CP2416 CP2416G 22.20 x 14.20 564 x 361 22.50 x 14.50 572 x 368 1 Quarter-turn 12.00 305
CSD24168SS6 24.00 x 16.00 x 8.00 610 x 406 x 203 16 16 CP2416 CP2416G 22.20 x 14.20 564 x 361 22.50 x 14.50 572 x 368 1 Quarter-turn 12.00 305
CSD24208SS 24.00 x 20.00 x 8.00 610 x 508 x 203 16 16 CP2420 CP2420G 22.20 x 18.20 564 x 462 22.50 x 18.50 572 x 470 1 Quarter-turn 12.00 305
CSD24208SS6 24.00 x 20.00 x 8.00 610 x 508 x 203 16 16 CP2420 CP2420G 22.20 x 18.20 564 x 462 22.50 x 18.50 572 x 470 1 Quarter-turn 12.00 305
CSD24248SS 24.00 x 24.00 x 8.00 610 x 610 x 203 14 16 CP2424 CP2424 22.20 x 22.20 564 x 564 22.50 x 22.50 572 x 572 2 Quarter-turn 5.00 127
CSD24248SS6 24.00 x 24.00 x 8.00 610 x 610 x 203 14 16 CP2424 CP2424G 22.20 x 22.20 564 x 564 22.50 x 22.50 572 x 572 2 Quarter-turn 5.00 127
Industrial+Automation+Supply!–!www.iasinc.com!,!Tel:!800,736,2345!

PH 763.422.2211 • FAX 763.422.2600 • PENTAIRPROTECT.COMEQUIPMENT PROTECTION STAINLESS STEEL 157
2
WALLMOUNT ENCLOSURES ConCept™ Wall-mount enClosures
Catalog Number AxBxC in. AxBxC mm
Door
Gauge
Body
Gauge Panel
Conductive
Panel
Panel Size
D x E (in.)
Panel Size
D x E (mm)
Mounting
G x H (in.)
Mounting
G x H (mm)
Latches
Qty. Style J (in.) J (mm)
CSD24308SS 24.00 x 30.00 x 8.00 610 x 762 x 203 14 16 CP3024 CP30240G 28.20 x 22.20 716 x 564 28.50 x 22.50 724 x 572 2 Quarter-turn 5.00 127
CSD24308SS6 24.00 x 30.00 x 8.00 610 x 762 x 203 14 16 CP3024 CP3024G 28.20 x 22.20 716 x 564 28.50 x 22.50 724 x 572 2 Quarter-turn 5.00 127
CSD30248SS 30.00 x 24.00 x 8.00 762 x 610 x 203 14 16 CP3024 CP3024G 28.20 x 22.20 716 x 564 28.50 x 22.50 724 x 572 2 Quarter-turn 5.00 127
CSD30248SS6 30.00 x 24.00 x 8.00 762 x 610 x 203 14 16 CP3024 CP3024G 28.20 x 22.20 716 x 564 28.50 x 22.50 724 x 572 2 Quarter-turn 5.00 127
CSD30308SS 30.00 x 30.00 x 8.00 762 x 762 x 203 14 16 CP3030 CP3030G 28.20 x 28.20 716 x 716 28.50 x 28.50 724 x 724 2 Quarter-turn 5.00 127
CSD30308SS6 30.00 x 30.00 x 8.00 762 x 762 x 203 14 16 CP3030 CP3030G 28.20 x 28.20 716 x 716 28.50 x 28.50 724 x 724 2 Quarter-turn 5.00 127
CSD36248SS 36.00 x 24.00 x 8.00 914 x 610 x 203 14 16 CP3624 CP3624G 34.20 x 22.20 869 x 564 34.50 x 22.50 876 x 572 2 Quarter-turn 5.00 127
CSD36248SS6 36.00 x 24.00 x 8.00 914 x 610 x 203 14 16 CP3624 CP3624G 34.20 x 22.20 869 x 564 34.50 x 22.50 876 x 572 2 Quarter-turn 5.00 127
CSD36308SS 36.00 x 30.00 x 8.00 914 x 762 x 203 14 16 CP3630 CP3630G 34.20 x 28.20 869 x 716 34.50 x 28.50 876 x 724 2 Quarter-turn 5.00 127
CSD36308SS6 36.00 x 30.00 x 8.00 914 x 762 x 203 14 16 CP3630 CP3630G 34.20 x 28.20 869 x 716 34.50 x 28.50 876 x 724 2 Quarter-turn 5.00 127
CSD161210SS 16.00 x 12.00 x 10.00 406 x 305 x 254 16 16 CP1612 CP1612G 14.20 x 10.20 361 x 259 14.50 x 10.50 368 x 267 1 Quarter-turn 8.00 203
CSD161210SS6 16.00 x 12.00 x 10.00 406 x 305 x 254 16 16 CP1612 CP1612G 14.20 x 10.20 361 x 259 14.50 x 10.50 368 x 267 1 Quarter-turn 8.00 203
CSD161610SS 16.00 x 16.00 x 10.00 406 x 406 x 254 16 16 CP1616 CP1616G 14.20 x 14.20 361 x 361 14.50 x 14.50 368 x 368 1 Quarter-turn 8.00 203
CSD161610SS6 16.00 x 16.00 x 10.00 406 x 406 x 254 16 16 CP1616 CP1616G 14.20 x 14.20 361 x 361 14.50 x 14.50 368 x 368 1 Quarter-turn 8.00 203
CSD162010SS 16.00 x 20.00 x 10.00 406 x 508 x 254 16 16 CP2016 CP2016G 18.20 x 14.20 462 x 361 14.50 x 18.50 368 x 470 1 Quarter-turn 8.00 203
CSD162010SS6 16.00 x 20.00 x 10.00 406 x 508 x 254 16 16 CP2016 CP2016G 18.20 x 14.20 462 x 361 14.50 x 18.50 368 x 470 1 Quarter-turn 8.00 203
CSD201610SS 20.00 x 16.00 x 10.00 508 x 406 x 254 16 16 CP2016 CP2016G 18.20 x 14.20 462 x 361 18.50 x 14.50 470 x 368 1 Quarter-turn 10.00 254
CSD201610SS6 20.00 x 16.00 x 10.00 508 x 406 x 254 16 16 CP2016 CP2016G 18.20 x 14.20 462 x 361 18.50 x 14.50 470 x 368 1 Quarter-turn 10.00 254
CSD202010SS 20.00 x 20.00 x 10.00 508 x 508 x 254 16 16 CP2020 CP2020G 18.20 x 18.20 462 x 462 18.50 x 18.50 470 x 470 1 Quarter-turn 10.00 254
CSD202010SS6 20.00 x 20.00 x 10.00 508 x 508 x 254 16 16 CP2020 CP2020G 18.20 x 18.20 462 x 462 18.50 x 18.50 470 x 470 1 Quarter-turn 10.00 254
CSD202410SS 20.00 x 24.00 x 10.00 508 x 610 x 254 16 16 CP2420 CP2420G 22.20 x 18.20 464 x 462 18.50 x 22.50 470 x 572 1 Quarter-turn 10.00 254
CSD202410SS6 20.00 x 24.00 x 10.00 508 x 610 x 254 16 16 CP2420 CP2420G 22.20 x 18.20 464 x 462 18.50 x 22.50 470 x 572 1 Quarter-turn 10.00 254
CSD241610SS 24.00 x 16.00 x 10.00 610 x 406 x 254 16 16 CP2416 CP2416G 22.20 x 14.20 564 x 361 22.50 x 14.50 572 x 368 1 Quarter-turn 12.00 305
CSD241610SS6 24.00 x 16.00 x 10.00 610 x 406 x 254 16 16 CP2416 CP2416G 22.20 x 14.20 564 x 361 22.50 x 14.50 572 x 368 1 Quarter-turn 12.00 305
CSD242010SS 24.00 x 20.00 x 10.00 610 x 508 x 254 16 16 CP2420 CP2420G 22.20 x 18.20 564 x 462 22.50 x 18.50 572 x 470 1 Quarter-turn 12.00 305
CSD242010SS6 24.00 x 20.00 x 10.00 610 x 508 x 254 16 16 CP2420 CP2420G 22.20 x 18.20 564 x 462 22.50 x 18.50 572 x 470 1 Quarter-turn 12.00 305
CSD242410SS 24.00 x 24.00 x 10.00 610 x 610 x 254 14 16 CP2424 CP2424G 22.20 x 22.20 564 x 564 22.50 x 22.50 572 x 572 2 Quarter-turn 5.00 127
CSD242410SS6 24.00 x 24.00 x 10.00 610 x 610 x 254 14 16 CP2424 CP2424 22.20 x 22.20 564 x 564 22.50 x 22.50 572 x 572 2 Quarter-turn 5.00 127
CSD243010SS 24.00 x 30.00 x 10.00 610 x 762 x 254 14 16 CP3024 CP3024G 28.20 x 22.20 716 x 564 22.50 x 28.50 572 x 724 2 Quarter-turn 5.00 127
CSD243010SS6 24.00 x 30.00 x 10.00 610 x 762 x 254 14 16 CP3024 CP3024G 28.20 x 22.20 716 x 564 22.50 x 28.50 572 x 724 2 Quarter-turn 5.00 127
CSD302010SS 30.00 x 20.00 x 10.00 762 x 508 x 254 14 16 CP3020 CP3020G 28.20 x 18.20 716 x 462 28.50 x 18.50 724 x 470 2 Quarter-turn 5.00 127
CSD302010SS6 30.00 x 20.00 x 10.00 762 x 508 x 254 14 16 CP3020 CP3020G 28.20 x 18.20 716 x 462 28.50 x 18.50 724 x 470 2 Quarter-turn 5.00 127
CSD302410SS 30.00 x 24.00 x 10.00 762 x 610 x 254 14 16 CP3024 CP3024G 28.20 x 22.20 716 x 564 28.50 x 22.50 724 x 572 2 Quarter-turn 5.00 127
CSD302410SS6 30.00 x 24.00 x 10.00 762 x 610 x 254 14 16 CP3024 CP3024G 28.20 x 22.20 716 x 564 28.50 x 22.50 724 x 572 2 Quarter-turn 5.00 127
CSD303010SS 30.00 x 30.00 x 10.00 762 x 762 x 254 14 16 CP3030 CP3030G 28.20 x 28.20 716 x 716 28.50 x 28.50 724 x 724 2 Quarter-turn 5.00 127
CSD303010SS6 30.00 x 30.00 x 10.00 762 x 762 x 254 14 16 CP3030 CP3030G 28.20 x 28.20 716 x 716 28.50 x 28.50 724 x 724 2 Quarter-turn 5.00 127
CSD362410SS 36.00 x 24.00 x 10.00 914 x 610 x 254 14 16 CP3624 CP3624G 34.20 x 22.20 869 x 564 34.50 x 22.50 876 x 572 2 Quarter-turn 5.00 127
CSD362410SS6 36.00 x 24.00 x 10.00 914 x 610 x 254 14 16 CP3624 CP3624G 34.20 x 22.20 869 x 564 34.50 x 22.50 876 x 572 2 Quarter-turn 5.00 127
CSD363010SS 36.00 x 30.00 x 10.00 914 x 762 x 254 14 16 CP3630 CP3630G 34.20 x 28.20 869 x 716 34.50 x 28.50 876 x 724 2 Quarter-turn 5.00 127
CSD363010SS6 36.00 x 30.00 x 10.00 914 x 762 x 254 14 16 CP3630 CP3630G 34.20 x 28.20 869 x 716 34.50 x 28.50 876 x 724 2 Quarter-turn 5.00 127
CSD482410SS 48.00 x 24.00 x 10.00 1219 x 610 x 254 14 14 CP4824 CP4824G 46.20 x 22.20 1173 x 564 46.50 x 22.50 1181 x 572 1 3-point 24.00 610
CSD482410SS6 48.00 x 24.00 x 10.00 1219 x 610 x 254 14 14 CP4824 CP4824G 46.20 x 22.20 1173 x 564 46.50 x 22.50 1181 x 572 1 3-point 24.00 610
CSD202012SS 20.00 x 20.00 x 12.00 508 x 508 x 305 14 16 CP2020 CP2020G 18.20 x 18.20 462 x 462 18.50 x 18.50 470 x 470 1 Quarter-turn 10.00 254
CSD202012SS6 20.00 x 20.00 x 12.00 508 x 508 x 305 14 16 CP2020 CP2020G 18.20 x 18.20 462 x 462 18.50 x 18.50 470 x 470 1 Quarter-turn 10.00 254
CSD242412SS 24.00 x 24.00 x 12.00 610 x 610 x 305 14 16 CP2424 CP2424G 22.20 x 22.20 564 x 564 22.50 x 22.50 572 x 572 2 Quarter-turn 5.00 127
CSD242412SS6 24.00 x 24.00 x 12.00 610 x 610 x 305 14 16 CP2424 CP2424G 22.20 x 22.20 564 x 564 22.50 x 22.50 572 x 572 2 Quarter-turn 5.00 127
CSD302412SS 30.00 x 24.00 x 12.00 762 x 610 x 305 14 16 CP3024 CP3024G 28.20 x 22.20 716 x 564 28.50 x 22.50 724 x 572 2 Quarter-turn 5.00 127
CSD302412SS6 30.00 x 24.00 x 12.00 762 x 610 x 305 14 16 CP3024 CP3024G 28.20 x 22.20 716 x 564 28.50 x 22.50 724 x 572 2 Quarter-turn 5.00 127
CSD303012SS 30.00 x 30.00 x 12.00 762 x 762 x 305 14 16 CP3030 CP3030 28.20 x 28.20 716 x 716 28.50 x 28.50 724 x 724 2 Quarter-turn 5.00 127
CSD303012SS6 30.00 x 30.00 x 12.00 762 x 762 x 305 14 16 CP3030 CP3030G 28.20 x 28.20 716 x 716 28.50 x 28.50 724 x 724 2 Quarter-turn 5.00 127
CSD362412SS 36.00 x 24.00 x 12.00 914 x 610 x 305 14 16 CP3624 CP3624G 34.20 x 22.20 869 x 564 34.50 x 22.50 876 x 572 2 Quarter-turn 5.00 127
CSD362412SS6 36.00 x 24.00 x 12.00 914 x 610 x 305 14 16 CP3624 CP3624G 34.20 x 22.20 869 x 564 34.50 x 22.50 876 x 572 2 Quarter-turn 5.00 127
CSD363012SS 36.00 x 30.00 x 12.00 914 x 762 x 305 14 14 CP3630 CP3630G 34.20 x 28.20 869 x 716 34.50 x 28.50 876 x 724 2 Quarter-turn 5.00 127
CSD363012SS6 36.00 x 30.00 x 12.00 914 x 762 x 305 14 14 CP3630 CP3630G 34.20 x 28.20 869 x 716 34.50 x 28.50 876 x 724 2 Quarter-turn 5.00 127
Catalog numbers ending in 6 are Type 316L stainless steel.
Purchase panels separately. Optional stainless steel, composite and aluminum panels are also available for most sizes.
Optional NEMA style steel and stainless steel panels require conversion kit catalog number CCPM4.
Industrial+Automation+Supply!–!www.iasinc.com!,!Tel:!800,736,2345!

EQUIPMENT PROTECTIONSUBJECT TO CHANGE WITHOUT NOTICESTAINLESS STEEL158
2
WALLMOUNT ENCLOSURES ConCept™ Wall-mount enClosures
Standard Product One-Door with Window
Catalog Number AxBxC in. AxBxC mm
Door
Ga.
Body
Ga. Panel
Panel Size
D x E (in.)
Panel Size
D x E (mm)
Mounting
G x H (in.)
Mounting
G x H (mm)
Window Size
M x N (in.)
Window Size
M x N (mm)
Latch
Qty. Style J (in.) J (mm)
CSD12126WSS 12.00 x 12.00 x 6.00 305 x 305 x 152 16 16 CP1212 10.20 x 10.20 259 x 259 10.50 x 10.50 267 x 267 8.74 x 7.10 222 x 180 1 Quarter-turn 6.00 152
CSD16126WSS 16.00 x 12.00 x 6.00 406 x 305 x 152 16 16 CP1612 14.20 x 10.20 361 x 259 14.50 x 10.50 368 x 267 12.74 x 7.10 324 x 180 1 Quarter-turn 8.00 203
CSD20166WSS 20.00 x 16.00 x 6.00 508 x 406 x 152 16 16 CP2016 18.20 x 14.20 462 x 361 18.50 x 14.50 470 x 368 16.74 x 11.10 425 x 282 1 Quarter-turn 10.00 254
CSD20206WSS 20.00 x 20.00 x 6.00 508 x 508 x 152 16 16 CP2020 18.20 x 18.20 462 x 462 18.50 x 18.50 470 x 470 16.74 x 15.10 425 x 384 1 Quarter-turn 10.00 254
CSD20168WSS 20.00 x 16.00 x 8.00 508 x 406 x 203 16 16 CP2016 18.20 x 14.20 462 x 361 18.50 x 14.50 470 x 368 16.74 x 11.10 425 x 282 1 Quarter-turn 10.00 254
CSD20208WSS 20.00 x 20.00 x 8.00 508 x 508 x 203 16 16 CP2020 18.20 x 18.20 462 x 462 18.50 x 18.50 470 x 470 16.74 x 15.10 425 x 384 1 Quarter-turn 10.00 254
CSD24208WSS 24.00 x 20.00 x 8.00 610 x 508 x 203 16 16 CP2420 22.20 x 18.20 564 x 462 22.50 x 18.50 572 x 470 20.74 x 15.10 527 x 384 1 Quarter-turn 12.00 305
CSD24248WSS 24.00 x 24.00 x 8.00 610 x 610 x 203 14 16 CP2424 22.20 x 22.20 564 x 564 22.50 x 22.50 572 x 572 20.74 x 17.68 527 x 449 2 Quarter-turn 5.00 127
CSD30248WSS 30.00 x 24.00 x 8.00 762 x 610 x 203 14 16 CP3024 28.20 x 22.20 716 x 564 28.50 x 22.50 724 x 572 26.74 x 17.68 679 x 449 2 Quarter-turn 5.00 127
CSD161210WSS 16.00 x 12.00 x 10.00 406 x 305 x 254 16 16 CP1612 14.20 x 10.20 361 x 259 14.50 x 10.50 368 x 267 12.74 x 7.10 324 x 180 1 Quarter-turn 8.00 203
CSD201610WSS 20.00 x 16.00 x 10.00 508 x 406 x 254 16 16 CP2016 18.20 x 14.20 462 x 361 18.50 x 14.50 470 x 368 16.74 x 11.10 425 x 282 1 Quarter-turn 10.00 254
CSD202010WSS 20.00 x 20.00 x 10.00 508 x 508 x 254 16 16 CP2020 18.20 x 18.20 462 x 462 18.50 x 18.50 470 x 470 16.74 x 15.10 425 x 384 1 Quarter-turn 10.00 254
CSD242010WSS 24.00 x 20.00 x 10.00 610 x 508 x 254 16 16 CP2420 22.20 x 18.20 564 x 462 22.50 x 18.50 572 x 470 20.74 x 15.10 527 x 384 1 Quarter-turn 12.00 305
CSD242410WSS 24.00 x 24.00 x 10.00 610 x 610 x 254 14 16 CP2424 22.20 x 22.20 564 x 564 22.50 x 22.50 572 x 572 20.74 x 17.68 527 x 449 2 Quarter-turn 5.00 127
CSD302410WSS 30.00 x 24.00 x 10.00 762 x 610 x 254 14 16 CP3024 28.20 x 22.20 716 x 564 28.50 x 22.50 724 x 572 26.74 x 17.68 679 x 449 2 Quarter-turn 5.00 127
CSD202012WSS 20.00 x 20.00 x 12.00 508 x 508 x 305 14 16 CP2020 18.20 x 18.20 462 x 462 18.50 x 18.50 470 x 470 16.74 x 15.10 425 x 384 1 Quarter-turn 10.00 254
CSD302412WSS 30.00 x 24.00 x 12.00 762 x 610 x 305 14 16 CP3024 28.20 x 22.20 716 x 564 28.50 x 22.50 724 x 572 26.74 x 17.68 679 x 449 2 Quarter-turn 5.00 127
Purchase panels separately.
Optional NEMA style steel and stainless steel panels require conversion kit catalog number CCPM4.
Material is stainless steel Type 304.
For Conductive Panels, add a “G” to the panel catalog number.
Industrial+Automation+Supply!–!www.iasinc.com!,!Tel:!800,736,2345!

PH 763.422.2211 • FAX 763.422.2600 • PENTAIRPROTECT.COMEQUIPMENT PROTECTION STAINLESS STEEL 159
2
WALLMOUNT ENCLOSURES ConCept™ Wall-mount enClosures
Popular Cooling Products
Enclosure Depth (C Dimension) Filter Fans*
6 in. (152 mm) SF0416414
8 in. (203 mm) SF0516414
10 in. (254 mm) SF0916414
12 in. (305 mm) SF1016414
*Important: Visit tools.hoffmanonline.com/attachments to access our Cooling Selection Tool to determine the appropriate cooling solution for your application.
Popular Accessories
Enclosure Width (B Dimension) Lights Hole Seals Window Kits
12 in. (305 mm) LEDPUCK AS050SS APWK53NFSS
16 in. (406 mm) LEDA2M35 AS050SS APWK53NFSS
20 in. (508 mm) LED24V15 AS050SS APWK53NFSS
24 in. (610 mm) LED24V15 AS050SS APWK53NFSS
30 in. (762 mm) LED24V15 AS050SS APWK53NFSS
Industrial+Automation+Supply!–!www.iasinc.com!,!Tel:!800,736,2345!

EQUIPMENT PROTECTIONSUBJECT TO CHANGE WITHOUT NOTICESTAINLESS STEEL160
2
WALLMOUNT ENCLOSURES ConCept™ Wall-mount enClosures
CONCEPT™ WITH ADDITIONAL QUARTERTURN LATCHES, TYPE 4X
INDUSTRY STANDARDS
Mounting brackets required to meet UL/CSA external mounting
requirements.
UL 508A Listed; Type 3R, 4, 4X, 12; File No. E61997
cUL Listed per CSA C22.2 No 94; Type 3R, 4, 4X, 12; File Number
E61997
NEMA/EEMAC Type 3R, 4, 4X, 12, 13
IEC 60529, IP66
Meets NEMA Type 3RX requirements
APPLICATION
For indoor or outdoor applications that require corrosion protection
from chemicals and water, CONCEPT™ enclosures house larger
controls and feature streamlined styling with an attractive stroked
finish, flush quarter-turn latches and an integral door ramp that
ensures the door gasket sealing surface aligns with the enclosure
body for secure closure.
SPECIFICATIONS
• Manufactured from 14 gauge Type 304 or Type 316L stainless
steel
• Seams continuously welded and ground smooth
• Minimum-width body flange provides maximum body opening
• Corner formed doors
• External formed 90-degree body flange
• Stainless steel quarter-turn latches with flush slotted insert
provided on three sides of enclosure door
• Integral door alignment device to properly align door and gasket
to body offset
• Panel mounting studs fit optional CONCEPT panels and other
accessories
• Mounting holes in back of body for direct mounting or for optional
external mounting brackets
• Stainless steel hidden hinges
• Doors are interchangeable and easily removed by pulling clip-
style hinge pins
• Provision on door for thermoplastic data pocket
• Provision on door for optional doorstop kit
• Seamless foam-in-place gasket
• Self-grounding latch system with double seal
• Bonding provision on door; grounding stud on body
• Furnished hardware kit consists of panel mounting nuts, panel
grounding hardware and sealing washers for wall-mounting
holes
• Installation instructions
FINISH
Door and body have smooth #4 brushed finish.
ACCESSORIES
See also Accessories.
Industrial Corrosion Inhibitors
Type 316 Stainless Steel Door Stop Kit
CONCEPT™ Panels
H2OMIT™ Vent Drains, Type 4X
H2OMIT™ Thermoelectric Dehumidifier
Handles
Lock Inserts
MODIFICATION AND CUSTOMIZATION
Hoffman excels at modifying and customizing products to your
specifications. Contact your local Hoffman sales office or distributor
for complete information.
BULLETIN: CWS
Industrial+Automation+Supply!–!www.iasinc.com!,!Tel:!800,736,2345!

PH 763.422.2211 • FAX 763.422.2600 • PENTAIRPROTECT.COMEQUIPMENT PROTECTION STAINLESS STEEL 161
2
WALLMOUNT ENCLOSURES ConCept™ Wall-mount enClosures
Standard Product
Catalog Number AxBxC in./mm
Door
Gauge
Body
Gauge Panel
Conductive
Panel
Panel Size
D x E
in./mm
Mounting
G x H
in./mm
Latches
Qty. Style
J
in./mm
CSD363610SSR 36.00 x 36.00 x 10.00
914 x 914 x 254
14 14 CP3636 CP3636G 34.20 x 34.20
869 x 869
34.50 x 34.50
876 x 876
4 Quarter-turn 10.00
254
CSD363610SS6R 36.00 x 36.00 x 10.00
914 x 914 x 254
14 14 CP3636 CP3636G 34.20 x 34.20
869 x 869
34.50 x 34.50
876 x 876
4 Quarter-turn 10.00
254
CSD423610SSR 42.00 x 36.00 x 10.00
1067 x 914 x 254
14 14 CP4236 CP4236G 40.20 x 34.20
1021 x 869
40.50 x 34.50
1029 x 876
4 Quarter-turn 13.00
330
CSD423610SS6R 42.00 x 36.00 x 10.00
1067 x 914 x 254
14 14 CP4236 CP4236G 40.20 x 34.20
1021 x 869
40.50 x 34.50
1029 x 876
4 Quarter-turn 13.00
330
CSD483610SSR 48.00 x 36.00 x 10.00
1219 x 914 x 254
14 14 CP4836 CP4836G 46.20 x 34.20
1173 x 869
46.50 x 34.50
1181 x 876
4 Quarter-turn 14.00
356
CSD483610SS6R 48.00 x 36.00 x 10.00
1219 x 914 x 254
14 14 CP4836 CP4836G 46.20 x 34.20
1173 x 869
46.50 x 34.50
1181 x 876
4 Quarter-turn 14.00
356
CSD603610SSR 60.00 x 36.00 x 10.00
1524 x 914 x 254
14 14 CP6036 CP6036G 58.20 x 34.20
1478 x 869
58.50 x 34.50
1486 x 876
4 Quarter-turn 17.00
432
CSD603610SS6R 60.00 x 36.00 x 10.00
1524 x 914 x 254
14 14 CP6036 CP6036G 58.20 x 34.20
1478 x 869
58.50 x 34.50
1486 x 876
4 Quarter-turn 17.00
432
CSD363612SSR 36.00 x 36.00 x 12.00
914 x 914 x 305
14 14 CP3636 CP3636G 34.20 x 34.20
869 x 869
34.50 x 34.50
876 x 876
4 Quarter-turn 10.00
254
CSD363612SS6R 36.00 x 36.00 x 12.00
914 x 914 x 305
14 14 CP3636 CP3636G 34.20 x 34.20
869 x 869
34.50 x 34.50
876 x 876
4 Quarter-turn 10.00
254
CSD423612SSR 42.00 x 36.00 x 12.00
1067 x 914 x 305
14 14 CP4236 CP4236G 40.20 x 34.20
1021 x 869
40.50 x 34.50
1029 x 876
4 Quarter-turn 13.00
330
CSD423612SS6R 42.00 x 36.00 x 12.00
1067 x 914 x 305
14 14 CP4236 CP4236G 40.20 x 34.20
1021 x 869
40.50 x 34.50
1029 x 876
4 Quarter-turn 13.00
330
CSD483612SSR 48.00 x 36.00 x 12.00
1219 x 914 x 305
14 14 CP4836 CP4836G 46.20 x 34.20
1173 x 869
46.50 x 34.50
1181 x 876
4 Quarter-turn 14.00
356
CSD483612SS6R 48.00 x 36.00 x 12.00
1219 x 914 x 305
14 14 CP4836 CP4836G 46.20 x 34.20
1173 x 869
46.50 x 34.50
1181 x 876
4 Quarter-turn 14.00
356
CSD603612SSR 60.00 x 36.00 x 12.00
1524 x 914 x 305
14 14 CP6036 CP6036G 58.20 x 34.20
869 x 462
58.50 x 34.50
1486 x 876
4 Quarter-turn 17.00
402
CSD603612SS6R 60.00 x 36.00 x 12.00
1524 x 914 x 305
14 14 CP6036 CP6036G 58.20 x 34.20
869 x 462
58.50 x 34.50
1486 x 876
4 Quarter-turn 17.00
402
CSD723612SSR 72.00 x 36.00 x 12.00
1829 x 914 x 305
14 14 CP7236 — 70.20 x 34.20
1783 x 462
70.50 x 34.50
1791 x 876
4 Quarter-turn 23.00
584
CSD723616SSR 72.00 x 36.00 x 16.00
1829 x 914 x 406
14 14 CP7236 — 70.20 x 34.20
1783 x 462
70.50 x 34.50
1791 x 876
4 Quarter-turn 23.00
584
Purchase panels separately.
Optional NEMA style steel and stainless steel panels require conversion kit catalog number CCPM-4.
Catalog numbers ending in 6R are Type 316L stainless steel.
%
$
%RG\2SHQLQJ
%
PP
2SHQLQJ
$
PP
%RG\
6SDFH
$
PP
'RRU
&OHDU
PP
'RRU&OHDU6SDFH
%
-
DUHXVHG
$-
:KHQ
ODWFKHV
-
PP
PP
'RRU
$OLJQPHQW
'HYLFH
'RRU%RQGLQJ
3URYLVLRQ
PP
PP
PP
PP
PP
&
PP
<
<
6HH
'HWDLO
3DQHO
*D
ZKHQ%
*D
ZKHQ%
!
%RG\
*URXQGLQJ
6WXG
0;
PP
&ROODU
6WXG
(
'
+
*
PP
PP
PP
PP
PP
PP
6(&7,21<<
2PLW
0LGGOH
6WXGV
LI$
3DQHO
2UGHU
6HSDUDWHO\
PP
PP
PP
'(7$,/
Industrial+Automation+Supply!–!www.iasinc.com!,!Tel:!800,736,2345!

EQUIPMENT PROTECTIONSUBJECT TO CHANGE WITHOUT NOTICESTAINLESS STEEL162
2
WALLMOUNT ENCLOSURES ConCept™ Wall-mount enClosures
CONCEPT™ SLOPED TOP, TYPE 4X
INDUSTRY STANDARDS
Mounting brackets required to meet UL/CSA external mounting
requirements.
UL 508A Listed; Type 3R, 4, 4X, 12; File No. E61997
cUL Listed per CSA C22.2 No 94; Type 3R, 4, 4X, 12; File No.
E61997
NEMA/EEMAC Type 3R, 4, 4X, 12, 13
CSA File No. 42186: Type 4, 4X, 12
VDE IP66
IEC 60529, IP66
Meets NEMA Type 3RX requirements
APPLICATION
For indoor or outdoor applications that require a sloped top and
corrosion protection from chemicals and water. CONCEPT™
Enclosures feature streamlined styling with an attractive stroked
finish and flush, stainless steel quarter-turn latches for secure
closure.
SPECIFICATIONS
• Manufactured from 16 and 14 gauge Type 304 stainless steel
• 20 degree sloped top prevents pooling of liquids and
accumulation of other debris
• Minimum-width body flange provides maximum body opening
• External formed 90-degree body flange
• Panel mounting studs fit optional CONCEPT panels and other
accessories
• Mounting holes in back of body for direct mounting or for optional
external mounting brackets
• Type 304 stainless steel hidden hinges promote clean aesthetic
appearance (two hinges on models under 36 in. in height; three
hinges for models 36 in. and taller)
• Corner-formed doors are interchangeable and easily removed by
pulling clip-style hinge pins
• Provision on door for thermoplastic data pocket
• Provision on door for optional door stop kit
• Seams continuously welded and ground smooth
• Stainless steel quarter-turn latches furnished with flush slotted
insert
• Seamless foam-in-place gasket
• Self-grounding latch system with double seal
• Bonding provision on door; grounding stud on body
• Furnished hardware kit consists of panel-mounting nuts, panel-
grounding hardware and sealing washers for wall-mounting
holes
• Installation instructions
FINISH
Door and body have smooth, #4 brushed finish.
ACCESSORIES
See also Accessories.
Panels
Type 316 Stainless Steel Door Stop Kit
CONCEPT™ Panels
H2OMIT™ Vent Drains, Type 4X
H2OMIT™ Thermoelectric Dehumidifier
Handles
Lock Inserts
MODIFICATION AND CUSTOMIZATION
Hoffman excels at modifying and customizing products to your
specifications. Contact your local Hoffman sales office or distributor
for complete information.
BULLETIN: CWS2
Industrial+Automation+Supply!–!www.iasinc.com!,!Tel:!800,736,2345!

PH 763.422.2211 • FAX 763.422.2600 • PENTAIRPROTECT.COMEQUIPMENT PROTECTION STAINLESS STEEL 163
2
WALLMOUNT ENCLOSURES ConCept™ Wall-mount enClosures
Standard Product
Catalog Number AxBxC in./mm
A2
in./mm Door Gauge Body Gauge Panel
Conductive
Panel
Panel
Size D x E
in./mm
Mounting
H x G
in./mm Latch Qty.
CSD16128SSST 16.00 x 12.00 x 8.00
406 x 305 x 203
18.88
480
16 16 CP162 CP1612G 14.20x10.20
361x259
14.50x10.50
368x267
1
CSD16168SSST 16.00 x 16.00 x 8.00
406 x 406 x 203
18.88
480
16 16 CP1616 CP1616G 14.20x14.20
361x361
14.50x14.50
368x368
1
CSD20168SSST 20.00 x 16.00 x 8.00
508 x 406 x 203
22.88
582
16 16 CP2016 CP2016G 18.20x14.20
462x361
18.50x14.50
470x368
1
CSD20208SSST 20.00 x 20.00 x 8.00
508 x 508 x 203
22.88
582
16 16 CP2020 CP2020G 18.20x18.20
462x462
18.50x18.50
470x470
1
CSD202012SSST 20.00 x 20.00 x 12.00
508 x 508 x 305
24.34
619
14 16 CP2020 CP2020G 18.20x18.20
462x462
18.50x18.50
470x470
1
CSD24208SSST 24.00 x 20.00 x 8.00
610 x 508 x 203
26.88
683
16 16 CP2420 CP2420G 22.20x18.20
564x462
22.50x18.50
572x470
1
CSD24248SSST 24.00 x 24.00 x 8.00
610 x 610 x 203
26.88
683
14 16 CP2424 CP2424G 22.20x22.20
254x254
22.50x22.50
572x572
2
CSD242412SSST 24.00 x 24.00 x 12.00
610 x 610 x 305
28.34
720
14 16 CP2424 CP2424G 22.20x22.20
254x254
22.50x22.50
572x572
2
CSD30248SSST 30.00 x 24.00 x 8.00
762 x 610 x 203
32.88
836
14 16 CP3024 CP3024G 28.20x22.20
716x564
28.50x22.50
724x572
2
CSD302412SSST 30.00 x 24.00 x 12.00
762 x 610 x 305
34.34
873
14 16 CP3024 CP3024G 28.20x22.20
716x564
28.50x22.50
724x572
2
CSD30308SSST 30.00 x 30.00 x 8.00
762 x 762 x 203
32.88
988
14 16 CP3030 CP3030G 28.20x28.20
716x716
28.50x28.50
724x724
2
CSD36248SSST 36.00 x 24.00 x 8.00
914 x 610 x 203
38.88
988
14 16 CP3624 CP3624G 34.20x22.20
869x564
34.50x22.50
876x572
2
CSD36308SSST 36.00 x 30.00 x 8.00
914 x 762 x 203
38.88
988
14 14 CP3630 CP3630G 34.20x28.20
869x716
34.500x28.50
876x724
2
CSD363012SSST 36.00 x 30.00 x 12.00
914 x 762 x 305
40.33
1025
14 14 CP3630 CP3630G 34.20x28.20
869x716
34.50x28.50
876x724
4
CSD363612SSST 36.00 x 36.00 x 12.00
914 x 914 x 305
40.33
1025
14 14 CP3636 CP3636G 34.20x34.20
869x869
34.50x34.50
876x876
4
CSD483616SSST 48.00 x 36.00 x 16.00
1219 x 914 x 406
53.78
1637
14 14 CP4836 CP4836G 46.20x34.20
1173x869
34.50x46.50
876x1181
4
CSD603616SSST 60.00 x 36.00 x 16.00
1524 x 914 x 406
65.78
1671
14 14 CP6036 CP6036G 58.20x34.20
1477x869
34.50x58.50
876x1486
4
Purchase panels separately.
%
&
$
$
+
*
;
(
'
Industrial+Automation+Supply!–!www.iasinc.com!,!Tel:!800,736,2345!

EQUIPMENT PROTECTIONSUBJECT TO CHANGE WITHOUT NOTICESTAINLESS STEEL164
2
WALLMOUNT ENCLOSURES ConCept™ Wall-mount enClosures
CONCEPT™ EMC, TYPE 4X
INDUSTRY STANDARDS
Mounting brackets required to meet UL/CSA external mounting
requirements.
UL 508A Listed; Type 4, 4X, 12; File No. E61997
cUL Listed per CSA C22.2 No 94; Type 4, 4X, 12; File No. E61997
NEMA/EEMAC Type 4, 4X, 12, 13
CSA File No. 42186: Type 4, 4X, 12
VDE IP66
IEC 60529, IP66
APPLICATION
Use stylish CONCEPT™ EMC Enclosures with their convenient
quarter-turn latches in corrosive indoor or outdoor applications to
contain stray electromagnetic interference (EMI) signals produced
by internal components and to shield those components from
external EMI/RFI interference.
SPECIFICATIONS
• Manufactured from 18, 16 and 14 gauge Type 304 stainless steel
• Seams continuously welded and ground smooth
• Minimum-width body flange provides maximum body opening
• External formed 90-degree body flange
• Panel mounting studs fit optional CONCEPT panels and other
accessories
• Mounting holes in back of body for direct mounting or for optional
external mounting brackets
• Stainless steel hidden hinges
• Easy-to-remove clip-style hinge pins
• Removable corner formed door
• Seamless foam-in-place gasket adjacent to spring finger EMC
gasket
• Quarter-turn latches with flush slotted insert
• Self-grounding latch system with double seal
• Integral body grounding stud
• Furnished hardware kit includes panel mounting nuts, grounding
hardware and sealing washers for wall-mounting holes
• Installation instructions
FINISH
Cover and body have smooth brushed #4 finish.
ACCESSORIES
See also Accessories.
Industrial Corrosion Inhibitors
CONCEPT™ Panels
Handles
Lock Inserts
BULLETIN: CWSEM
Standard Product
Catalog Number AxBxC in./mm
Door
Gauge
Body
Gauge Panel
Conductive
Panel
Panel Size
D x E
in./mm
Mounting
G x H
in./mm
Latches
Qty.
J
in./mm
CSD12126EMCSS 12.00 x 12.00 x 6.00
305 x 305 x 152
16 18 CP1212 CP1212G 10.20 x 10.20
259 x 259
10.50 x 10.50
267 x 267
1 6.00
152
CSD16126EMCSS 16.00 x 12.00 x 6.00
406 x 305 x 152
16 18 CP1612 CP1612G 14.20 x 10.20
361 x 259
14.50 x 10.50
368 x 267
1 8.00
203
CSD16166EMCSS 16.00 x 16.00 x 6.00
406 x 406 x 152
16 18 CP1616 CP1616G 14.20 x 14.20
361 x 361
14.50 x 14.50
368 x 368
1 8.00
203
CSD20166EMCSS 20.00 x 16.00 x 6.00
508 x 406 x 152
16 18 CP2016 CP2016G 18.20 x 14.50
462 x 361
18.50 x 14.50
470 x 368
1 10.00
254
CSD16208EMCSS 16.00 x 20.00 x 8.00
406 x 508 x 203
16 18 CP2016 CP2016G 18.20 x 14.20
462 x 361
14.50 x 18.50
368 x 470
1 8.00
203
CSD24208EMCSS 24.00 x 20.00 x 8.00
610 x 508 x 203
16 18 CP2420 CP2420G 22.20 x 18.20
564 x 462
22.50 x 18.50
572 x 470
1 12.00
305
CSD24248EMCSS 24.00 x 24.00 x 8.00
610 x 610 x 203
14 16 CP2424 CP2424G 22.20 x 22.20
564 x 564
22.50 x 22.50
572 x 572
2 5.00
127
CSD30248EMCSS 30.00 x 24.00 x 8.00
762 x 610 x 203
14 16 CP3024 CP3024G 28.20 x 22.20
716 x 564
28.50 x 22.50
724 x 572
2 5.00
127
CSD36308EMCSS 36.00 x 30.00 x 8.00
914 x 762 x 203
14 16 CP3630 CP3630G 34.20 x 28.20
869 x 716
34.50 x 28.50
876 x 724
2 5.00
127
CSD242412EMCSS 24.00 x 24.00 x 12.00
610 x 610 x 305
14 16 CP2424 CP2424G 22.20 x 22.20
564 x 564
22.50 x 22.50
572 x 572
2 5.00
127
CSD362412EMCSS 36.00 x 24.00 x 12.00
914 x 610 x 305
14 16 CP3624 CP3624G 34.20 x 22.20
869 x 564
34.50 x 22.50
876 x 572
2 5.00
127
Purchase panels separately.
Industrial+Automation+Supply!–!www.iasinc.com!,!Tel:!800,736,2345!

EQUIPMENT PROTECTIONSUBJECT TO CHANGE WITHOUT NOTICESTAINLESS STEEL166
2
WALLMOUNT ENCLOSURES Wall-mount enClosures and aCCessories
WALL-MOUNT ENCLOSU RES AND ACCE SSORIES
CONTINUOUS HINGE WITH 3POINT LATCH, TYPE 4X
INDUSTRY STANDARDS
UL 508A Listed; Type 3R, 4, 4X, 12; File No. E61997
cUL Listed per CSA C22.2 No 94; Type 3R, 4, 4X, 12; File No.
E61997
NEMA/EEMAC Type 3R, 4, 4X, 12, 13
IEC 60529, IP66
Meets NEMA Type 3RX requirements
APPLICATION
These enclosures feature Hoffman’s exclusive POWERGLIDE™
Handle with 3-point latching, ideal for indoor or outdoor applications
that require corrosion protection, convenient access, and
padlocking security.
SPECIFICATIONS
• 14 gauge Type 304 or 316L stainless steel bodies and doors
• Seams continuously welded and ground smooth
• Seamless foam-in-place gasket
• Rolled lip around three sides of door
• Internal 3-point latch and Type 316L stainless steel padlocking
POWERGLIDE Handle
• Remove door by pulling stainless steel continuous hinge pin
• Data pocket is high-impact thermoplastic
• Collar studs provided for mounting optional panels
• Exterior hardware on Type 316L stainless steel enclosures
matches enclosure material
• Bonding provision on door; grounding stud on body
FINISH
Door, sides, top and bottom have smooth #4 brushed finish. Handle
is electropolished.
ACCESSORIES
See also Accessories.
Panels for Type 3R, 4, 4X, 12 and 13 Enclosures
Steel and Stainless Steel Window Kits
H2OMIT™ Vent Drains, Type 4X
H2OMIT™ Thermoelectric Dehumidifier
MODIFICATION AND CUSTOMIZATION
Hoffman excels at modifying and customizing products to your
specifications. Contact your local Hoffman sales office or distributor
for complete information.
BULLETIN: A4SW3
Standard Product
Catalog Number AxBxC in./mm
Stainless
Steel Type
F
in./mm
Steel
Panel
Conductive
Panel
Stainless
Steel Panel
Panel Size
D x E
in./mm
Data
Pocket
A24H2006SSLP3PT 24.00 x 20.00 x 6.00
610 x 508 x 152
304 3.00
76
A24P20 A24P20G A24P20SS6 21.00 x 17.00
533 x 432
Small
A24H2006SS6LP3PT 24.00 x 20.00 x 6.00
610 x 508 x 152
316L 3.00
76
A24P20 A24P20G A24P20SS6 21.00 x 17.00
533 x 432
Small
A24H2008SSLP3PT 24.00 x 20.00 x 8.00
610 x 508 x 203
304 3.00
76
A24P20 A24P20G A24P20SS6 21.00 x 17.00
533 x 432
Small
A24H2008SS6LP3PT 24.00 x 20.00 x 8.00
610 x 508 x 203
316L 3.00
76
A24P20 A24P20G A24P20SS6 21.00 x 17.00
533 x 432
Small
A24H2408SSLP3PT 24.00 x 24.00 x 8.00
610 x 610 x 203
304 3.00
76
A24P24 A24P24G A24P24SS6 21.00 x 21.00
533 x 533
Small
A24H2408SS6LP3PT 24.00 x 24.00 x 8.00
610 x 610 x 203
316L 3.00
76
A24P24 A24P24G A24P24SS6 21.00 x 21.00
533 x 533
Small
A30H2408SSLP3PT 30.00 x 24.00 x 8.00
762 x 610 x 203
304 3.00
76
A30P24 A30P24G A30P24SS6 27.00 x 21.00
686 x 533
Large
A30H2408SS6LP3PT 30.00 x 24.00 x 8.00
762 x 610 x 203
316L 3.00
76
A30P24 A30P24G A30P24SS6 27.00 x 21.00
686 x 533
Large
A30H3008SSLP3PT 30.00 x 30.00 x 8.00
762 x 762 x 203
304 3.00
76
A30P30 A30P30G A30P30SS6 27.00 x 27.00
686 x 686
Large
A30H3008SS6LP3PT 30.00 x 30.00 x 8.00
762 x 762 x 203
316L 3.00
76
A30P30 A30P30G A30P30SS6 27.00 x 27.00
686 x 686
Large
A36H2408SSLP3PT 36.00 x 24.00 x 8.00
914 x 610 x 203
304 3.00
76
A36P24 A36P24G A36P24SS6 33.00 x 21.00
838 x 533
Large
A36H2408SS6LP3PT 36.00 x 24.00 x 8.00
914 x 610 x 203
316L 3.00
76
A36P24 A36P24G A36P24SS6 33.00 x 21.00
838 x 533
Large
A36H3008SSLP3PT 36.00 x 30.00 x 8.00
914 x 762 x 203
304 3.00
76
A36P30 A36P30G A36P30SS6 33.00 x 27.00
838 x 686
Large
A36H3008SS6LP3PT 36.00 x 30.00 x 8.00
914 x 762 x 203
316L 3.00
76
A36P30 A36P30G A36P30SS6 33.00 x 27.00
838 x 686
Large
A48H3608SSLP3PT 48.00 x 36.00 x 8.00
1219 x 914 x 203
304 3.00
76
A48P36 A48P36G A48P36SS6 45.00 x 33.00
1143 x 838
Large
A48H3608SS6LP3PT 48.00 x 36.00 x 8.00
1219 x 914 x 203
316L 3.00
76
A48P36 A48P36G A48P36SS6 45.00 x 33.00
1143 x 838
Large
A24H2010SSLP3PT 24.00 x 20.00 x 10.00
610 x 508 x 254
304 3.00
76
A24P20 A24P20G A24P20SS6 21.00 x 17.00
533 x 432
Small
Industrial+Automation+Supply!–!www.iasinc.com!,!Tel:!800,736,2345!

PH 763.422.2211 • FAX 763.422.2600 • PENTAIRPROTECT.COMEQUIPMENT PROTECTION STAINLESS STEEL 167
2
WALLMOUNT ENCLOSURES Wall-mount enClosures and aCCessories
Catalog Number AxBxC in./mm
Stainless
Steel Type
F
in./mm
Steel
Panel
Conductive
Panel
Stainless
Steel Panel
Panel Size
D x E
in./mm
Data
Pocket
A24H2010SS6LP3PT 24.00 x 20.00 x 10.00
610 x 508 x 254
316L 3.00
76
A24P20 A24P20G A24P20SS6 21.00 x 17.00
533 x 432
Small
A36H3010SSLP3PT 36.00 x 30.00 x 10.00
914 x 762 x 254
304 3.00
76
A36P30 A36P30G A36P30SS6 33.00 x 27.00
838 x 686
Large
A36H3010SS6LP3PT 36.00 x 30.00 x 10.00
914 x 762 x 254
316L 3.00
76
A36P30 A36P30G A36P30SS6 33.00 x 27.00
838 x 686
Large
A42H3010SSLP3PT 42.00 x 30.00 x 10.00
1067 x 762 x 254
304 3.00
76
A42P30 A42P30G A42P30SS6 39.00 x 27.00
991 x 686
Large
A48H3610SSLP3PT 48.00 x 36.00 x 10.00
1219 x 914 x 254
304 3.00
76
A48P36 A48P36G A48P36SS6 45.00 x 33.00
1143 x 838
Large
A48H3610SS6LP3PT 48.00 x 36.00 x 10.00
1219 x 914 x 254
316L 3.00
76
A48P36 A48P36G A48P36SS6 45.00 x 33.00
1143 x 838
Large
A24H2412SSLP3PT 24.00 x 24.00 x 12.00
610 x 610 x 305
304 3.00
76
A24P24 A24P24G A24P24SS6 21.00 x 21.00
533 x 533
Small
A24H2412SS6LP3PT 24.00 x 24.00 x 12.00
610 x 610 x 305
316L 3.00
76
A24P24 A24P24G A24P24SS6 21.00 x 21.00
533 x 533
Small
A30H2412SSLP3PT 30.00 x 24.00 x 12.00
760 x 610 x 305
304 3.00
76
A30P24 A30P24G A30P24SS6 27.00 x 21.00
686 x 533
Large
A30H2412SS6LP3PT 30.00 x 24.00 x 12.00
762 x 610 x 305
316L 3.00
76
A30P24 A30P24G A30P24SS6 27.00 x 21.00
686 x 533
Large
A36H3012SSLP3PT 36.00 x 30.00 x 12.00
914 x 762 x 305
304 3.00
76
A36P30 A36P30G A36P30SS6 33.00 X 27.00
838 x 686
Large
A36H3012SS6LP3PT 36.00 x 30.00 x 12.00
914 x 762 x 305
316L 3.00
76
A36P30 A36P30G A36P30SS6 33.00 X 27.00
838 x 686
Large
A36H3612SSLP3PT 36.00 x 36.00 x 12.00
914 x 914 x 305
304 3.00
76
A36P36 A36P36G A36P36SS6 33.00 x 33.00
838 x 838
Large
A36H3612SS6LP3PT 36.00 x 36.00 x 12.00
914 x 914 x 305
316L 3.00
76
A36P36 A36P36G A36P36SS6 33.00 x 33.00
838 x 838
Large
A42H3612SSLP3PT 42.00 x 36.00 x 12.00
1067 x 914 x 305
304 3.00
76
A42P36 A42P36G A42P36SS6 39.00 x 33.00
991 x 838
Large
A48H3612SSLP3PT 48.00 x 36.00 x 12.00
1219 x 914 x 305
304 3.00
76
A48P36 A48P36G A48P36SS6 45.00 x 33.00
1143 x 838
Large
A48H3612SS6LP3PT 48.00 x 36.00 x 12.00
1219 x 914 x 305
316L 3.00
76
A48P36 A48P36G A48P36SS6 45.00 x 33.00
1143 x 838
Large
A60H3612SSLP3PT 60.00 x 36.00 x 12.00
1524 x 914 x 305
304 3.00
76
A60P36 A60P36G A60P36SS6 57.00 x 33.00
1448 x 838
Large
A60H3612SS6LP3PT 60.00 x 36.00 x 12.00
1524 x 914 x 305
316L 3.00
76
A60P36 A60P36G A60P36SS6 57.00 x 33.00
1448 x 838
Large
A48H3616SSLP3PT 48.00 x 36.00 x 16.00
1219 x 914 x 406
304 3.00
76
A48P36 A48P36G A48P36SS6 45.00 x 33.00
1143 x 838
Large
A48H3616SS6LP3PT 48.00 x 36.00 x 16.00
1219 x 914 x 406
316L 3.00
76
A48P36 A48P36G A48P36SS6 45.00 x 33.00
1143 x 838
Large
A60H3616SSLP3PT 60.00 x 36.00 x 16.00
1524 x 914 x 406
304 3.00
76
A60P36 A60P36G A60P36SS6 57.00 x 33.00
1448 x 838
Large
A60H3616SS6LP3PT 60.00 x 36.00 x 16.00
1524 x 914 x 406
316L 3.00
76
A60P36 A60P36G A60P36SS6 57.00 x 33.00
1448 x 838
Large
Purchase panels separately. Optional stainless steel, composite and aluminum panels are available for most sizes.
Industrial+Automation+Supply!–!www.iasinc.com!,!Tel:!800,736,2345!

EQUIPMENT PROTECTIONSUBJECT TO CHANGE WITHOUT NOTICESTAINLESS STEEL168
2
WALLMOUNT ENCLOSURES Wall-mount enClosures and aCCessories
CONTINUOUS HINGE WITH CLAMPS, TYPE 4X
INDUSTRY STANDARDS
UL 508A Listed; Type 3R, 4, 4X, 12; File No. E61997
cUL Listed per CSA C22.2 No 94; Type 3R, 4, 4X, 12; File No.
E61997
NEMA/EEMAC Type 3, 3R, 4, 4X, 12, 13
CSA File No. 42186: Type 4, 4X, 12
IEC 60529, IP66
Meets NEMA Type 3RX requirements
APPLICATION
For use in indoor and outdoor corrosive environments that require
a water-tight seal, this enclosure’s seamless foam-in-place
gasket and screw-down clamps provide a secure seal against
contaminants.
SPECIFICATIONS
• 14 gauge Type 304 or Type 316L stainless steel bodies and doors
• Seams continuously welded and ground smooth
• Seamless foam-in-place gasket
• Rolled lip around three sides of door
• Stainless steel door clamp assembly
• Hasp and staple for padlocking
• Door removed by pulling stainless steel continuous hinge pin
• Data pocket is high-impact thermoplastic
• Collar studs provided for mounting optional panels
• Exterior hardware on Type 316L stainless steel enclosures
matches enclosure material
• Bonding provision on door; grounding stud on body
FINISH
Door, sides, top and bottom have smooth #4 brushed finish.
ACCESSORIES
See also Accessories.
Fast-Operating Clamp Assembly
Panels for Type 3R, 4, 4X, 12 and 13 Enclosures
Junction Box and Wall-Mount Enclosure Swing Out Panel Kit
Steel and Stainless Steel Window Kits
H2OMIT™ Vent Drains, Type 4X
H2OMIT™ Thermoelectric Dehumidifier
MODIFICATION AND CUSTOMIZATION
Hoffman excels at modifying and customizing products to your
specifications. Contact your local Hoffman sales office or distributor
for complete information.
BULLETIN: A4S
Standard Product
Catalog Number AxBxC in./mm
Stainless
Steel Type Steel Panel
Conductive
Steel Panel
Stainless
Steel Panel
Panel Size
D x E
in./mm
F
in./mm
Clamps
Qty.
Data
Pocket
A16H1206SSLP 16.00 x 12.00 x 6.00
406 x 305 x 152
304 A16P12 A16P12G A16P12SS6 13.00 x 9.00
330 x 229
1.25
32
4 Small
A16H1206SS6LP 16.00 x 12.00 x 6.00
406 x 305 x 152
316L A16P12 A16P12G A16P12SS6 13.00 x 9.00
330 x 229
1.25
32
4 Small
A16H1606SSLP 16.00 x 16.00 x 6.00
406 x 406 x 152
304 A16P16 A16P16G A16P16SS6 13.00 x 13.00
330 x 330
3.00
76
4 Small
A16H1606SS6LP 16.00 x 16.00 x 6.00
406 x 406 x 152
316L A16P16 A16P16G A16P16SS6 13.00 x 13.00
330 x 330
3.00
76
4 Small
A16H2006SSLP 16.00 x 20.00 x 6.00
406 x 508 x 152
304 A20P16 A20P16G A20P16SS6 17.00 x 13.00
432 x 330
3.00
76
4 Small
A16H2006SS6LP 16.00 x 20.00 x 6.00
406 x 508 x 152
316L A20P16 A20P16G A20P16SS6 17.00 x 13.00
432 x 330
3.00
76
4 Small
A20H1606SSLP 20.00 x 16.00 x 6.00
508 x 406 x 152
304 A20P16 A20P16G A20P16SS6 17.00 x 13.00
432 x 330
3.00
76
4 Small
A20H1606SS6LP 20.00 x 16.00 x 6.00
508 x 406 x 152
316L A20P16 A20P16G A20P16SS6 17.00 x 13.00
432 x 330
3.00
76
4 Small
A20H2006SSLP 20.00 x 20.00 x 6.00
508 x 508 x 152
304 A20P20 A20P20G A20P20SS6 17.00 x 17.00
432 x 432
3.00
76
4 Small
A20H2006SS6LP 20.00 x 20.00 x 6.00
508 x 508 x 152
316L A20P20 A20P20G A20P20SS6 17.00 x 17.00
432 x 432
3.00
76
4 Small
A24H2006SSLP 24.00 x 20.00 x 6.00
610 x 508 x 152
304 A24P20 A24P20G A24P20SS6 21.00 x 17.00
533 x 432
3.00
76
5 Small
A24H2006SS6LP 24.00 x 20.00 x 6.00
610 x 508 x 152
316L A24P20 A24P20G A24P20SS6 21.00 x 17.00
533 x 432
3.00
76
5 Small
A24H2406SSLP 24.00 x 24.00 x 6.00
610 x 610 x 152
304 A24P24 A24P24G A24P24SS6 21.00 x 21.00
533 x 533
3.00
76
5 Small
A24H2406SS6LP 24.00 x 24.00 x 6.00
610 x 610 x 152
316L A24P24 A24P24G A24P24SS6 21.00 x 21.00
533 x 533
3.00
76
5 Small
A16H1208SSLP 16.00 x 12.00 x 8.00
406 x 305 x 203
304 A16P12 A16P12G A16P12SS6 13.00 x 9.00
330 x 229
1.25
32
4 Small
A16H1208SS6LP 16.00 x 12.00 x 8.00
406 x 305 x 203
316L A16P12 A16P12G A16P12SS6 13.00 x 9.00
330 x 229
1.25
32
4 Small
A20H1608SSLP 20.00 x 16.00 x 8.00
508 x 406 x 203
304 A20P16 A20P16G A20P16SS6 17.00 x 13.00
432 x 330
3.00
76
4 Small
Industrial+Automation+Supply!–!www.iasinc.com!,!Tel:!800,736,2345!

PH 763.422.2211 • FAX 763.422.2600 • PENTAIRPROTECT.COMEQUIPMENT PROTECTION STAINLESS STEEL 169
2
WALLMOUNT ENCLOSURES Wall-mount enClosures and aCCessories
Catalog Number AxBxC in./mm
Stainless
Steel Type Steel Panel
Conductive
Steel Panel
Stainless
Steel Panel
Panel Size
D x E
in./mm
F
in./mm
Clamps
Qty.
Data
Pocket
A20H1608SS6LP 20.00 x 16.00 x 8.00
508 x 406 x 203
316L A20P16 A20P16G A20P16SS6 17.00 x 13.00
432 x 330
3.00
76
4 Small
A20H2008SSLP 20.00 x 20.00 x 8.00
508 x 508 x 203
304 A20P20 A20P20G A20P20SS6 17.00 x 17.00
432 x 432
3.00
76
4 Small
A20H2008SS6LP 20.00 x 20.00 x 8.00
508 x 508 x 203
316L A20P20 A20P20G A20P20SS6 17.00 x 17.00
432 x 432
3.00
76
4 Small
A20H2408SSLP 20.00 x 24.00 x 8.00
508 x 610 x 203
304 A24P20 A24P20G A24P20SS6 21.00 x 17.00
533 x 432
3.00
76
4 Small
A20H2408SS6LP 20.00 x 24.00 x 8.00
508 x 610 x 203
316L A24P20 A24P20G A24P20SS6 21.00 x 17.00
533 x 432
3.00
76
4 Small
A24H1608SSLP 24.00 x 16.00 x 8.00
610 x 406 x 203
304 A24P16 A24P16G A24P16SS6 21.00 x 13.00
533 x 330
3.00
76
5 Small
A24H1608SS6LP 24.00 x 16.00 x 8.00
610 x 406 x 203
316L A24P16 A24P16G A24P16SS6 21.00 x 13.00
533 x 330
3.00
76
5 Small
A24H2008SSLP 24.00 x 20.00 x 8.00
610 x 508 x 203
304 A24P20 A24P20G A24P20SS6 21.00 x 17.00
533 x 432
3.00
76
5 Small
A24H2008SS6LP 24.00 x 20.00 x 8.00
610 x 508 x 203
316L A24P20 A24P20G A24P20SS6 21.00 x 17.00
533 x 432
3.00
76
5 Small
A24H2408SSLP 24.00 x 24.00 x 8.00
610 x 610 x 203
304 A24P24 A24P24G A24P24SS6 21.00 x 21.00
533 x 533
3.00
76
5 Small
A24H2408SS6LP 24.00 x 24.00 x 8.00
610 x 610 x 203
316L A24P24 A24P24G A24P24SS6 21.00 x 21.00
533 x 533
3.00
76
5 Small
A24H3008SSLP 24.00 x 30.00 x 8.00
610 x 762 x 203
304 A30P24 A30P24G A30P24SS6 27.00 x 21.00
686 x 533
3.00
76
7 Small
A24H3008SS6LP 24.00 x 30.00 x 8.00
610 x 762 x 203
316L A30P24 A30P24G A30P24SS6 27.00 x 21.00
686 x 533
3.00
76
7 Small
A30H2008SSLP 30.00 x 20.00 x 8.00
762 x 508 x 203
304 A30P20 A30P20G A30P20SS6 27.00 x 17.00
686 x 432
3.00
76
5 Small
A30H2008SS6LP 30.00 x 20.00 x 8.00
762 x 508 x 203
316L A30P20 A30P20G A30P20SS6 27.00 x 17.00
686 x 432
3.00
76
5 Small
A30H2408SSLP 30.00 x 24.00 x 8.00
762 x 610 x 203
304 A30P24 A30P24G A30P24SS6 27.00 x 21.00
686 x 533
3.00
76
5 Large
A30H2408SS6LP 30.00 x 24.00 x 8.00
762 x 610 x 203
316L A30P24 A30P24G A30P24SS6 27.00 x 21.00
686 x 533
3.00
76
5 Large
A30H3008SSLP 30.00 x 30.00 x 8.00
762 x 762 x 203
304 A30P30 A30P30G A30P30SS6 27.00 x 27.00
686 x 686
3.00
76
7 Large
A30H3008SS6LP 30.00 x 30.00 x 8.00
762 x 762 x 203
316L A30P30 A30P30G A30P30SS6 27.00 x 27.00
686 x 686
3.00
76
7 Large
A36H2408SSLP 36.00 x 24.00 x 8.00
914 x 610 x 203
304 A36P24 A36P24G A36P24SS6 33.00 x 21.00
838 x 533
3.00
76
5 Large
A36H2408SS6LP 36.00 x 24.00 x 8.00
914 x 610 x 203
316L A36P24 A36P24G A36P24SS6 33.00 x 21.00
838 x 533
3.00
76
5 Large
A36H3008SSLP 36.00 x 30.00 x 8.00
914 x 762 x 203
304 A36P30 A36P30G A36P30SS6 33.00 x 27.00
838 x 686
3.00
76
7 Large
A36H3008SS6LP 36.00 x 30.00 x 8.00
914 x 762 x 203
316L A36P30 A36P30G A36P30SS6 33.00 x 27.00
838 x 686
3.00
76
7 Large
A42H3608SSLP 42.00 x 36.00 x 8.00
1067 x 914 x 203
304 A42P36 A42P36G A42P36SS6 39.00 x 33.00
991 x 838
3.00
76
8 Large
A42H3608SS6LP 42.00 x 36.00 x 8.00
1067 x 914 x 203
316L A42P36 A42P36G A42P36SS6 39.00 x 33.00
991 x 838
3.00
76
8 Large
A48H3608SSLP 48.00 x 36.00 x 8.00
1219 x 914 x 203
304 A48P36 A48P36G A48P36SS6 45.00 x 33.00
1143 x 838
3.00
76
8 Large
A48H3608SS6LP 48.00 x 36.00 x 8.00
1219 x 914 x 203
316L A48P36 A48P36G A48P36SS6 45.00 x 33.00
1143 x 838
3.00
76
8 Large
A20H1610SSLP 20.00 x 16.00 x 10.00
508 x 406 x 254
304 A20P16 A20P16G A20P16SS6 17.00 x 13.00
432 x 330
3.00
76
4 Small
A20H1610SS6LP 20.00 x 16.00 x 10.00
508 x 406 x 254
316L A20P16 A20P16G A20P16SS6 17.00 x 13.00
432 x 330
3.00
76
4 Small
A24H2010SSLP 24.00 x 20.00 x 10.00
610 x 508 x 254
304 A24P20 A24P20G A24P20SS6 21.00 x 17.00
533 x 432
3.00
76
5 Small
A24H2010SS6LP 24.00 x 20.00 x 10.00
610 x 508 x 254
316L A24P20 A24P20G A24P20SS6 21.00 x 17.00
533 x 432
3.00
76
5 Small
A30H2410SSLP 30.00 x 24.00 x 10.00
762 x 610 x 254
304 A30P24 A30P24G A30P24SS6 27.00 x 21.00
686 x 533
3.00
76
5 Large
A30H2410SS6LP 30.00 x 24.00 x 10.00
762 x 610 x 254
316L A30P24 A30P24G A30P24SS6 27.00 x 21.00
686 x 533
3.00
76
5 Large
A36H2410SSLP 36.00 x 24.00 x 10.00
914 x 610 x 254
304 A36P24 A36P24G A36P24SS6 33.00 x 21.00
838 x 533
3.00
76
5 Large
A36H2410SS6LP 36.00 x 24.00 x 10.00
914 x 610 x 254
316L A36P24 A36P24G A36P24SS6 33.00 x 21.00
838 x 533
3.00
76
5 Large
A36H3010SSLP 36.00 x 30.00 x 10.00
914 x 762 x 254
304 A36P30 A36P30G A36P30SS6 33.00 x 27.00
838 x 686
3.00
76
7 Large
A36H3010SS6LP 36.00 x 30.00 x 10.00
914 x 762 x 254
316L A36P30 A36P30G A36P30SS6 33.00 x 27.00
838 x 686
3.00
76
7 Large
A42H3010SSLP 42.00 x 30.00 x 10.00
1067 x 762 x 254
304 A42P30 A42P30G A42P30SS6 39.00 x 27.00
991 x 686
3.00
76
8 Large
A42H3010SS6LP 42.00 x 30.00 x 10.00
1067 x 762 x 254
316L A42P30 A42P30G A42P30SS6 39.00 x 27.00
991 x 686
3.00
76
8 Large
Industrial+Automation+Supply!–!www.iasinc.com!,!Tel:!800,736,2345!

EQUIPMENT PROTECTIONSUBJECT TO CHANGE WITHOUT NOTICESTAINLESS STEEL170
2
WALLMOUNT ENCLOSURES Wall-mount enClosures and aCCessories
Catalog Number AxBxC in./mm
Stainless
Steel Type Steel Panel
Conductive
Steel Panel
Stainless
Steel Panel
Panel Size
D x E
in./mm
F
in./mm
Clamps
Qty.
Data
Pocket
A48H3610SSLP 48.00 x 36.00 x 10.00
1219 x 914 x 254
304 A48P36 A48P36G A48P36SS6 45.00 x 33.00
1143 x 838
3.00
76
8 Large
A48H3610SS6LP 48.00 x 36.00 x 10.00
1219 x 914 x 254
316L A48P36 A48P36G A48P36SS6 45.00 x 33.00
1143 x 838
3.00
76
8 Large
A24H2412SSLP 24.00 x 24.00 x 12.00
610 x 610 x 305
304 A24P24 A24P24G A24P24SS6 21.00 x 21.00
533 x 533
3.00
76
5 Small
A24H2412SS6LP 24.00 x 24.00 x 12.00
610 x 610 x 305
316L A24P24 A24P24G A24P24SS6 21.00 x 21.00
533 x 533
3.00
76
5 Small
A30H2412SSLP 30.00 x 24.00 x 12.00
762 x 610 x 305
304 A30P24 A30P24G A30P24SS6 27.00 x 21.00
686 x 533
3.00
76
5 Large
A30H2412SS6LP 30.00 x 24.00 x 12.00
762 x 610 x 305
316L A30P24 A30P24G A30P24SS6 27.00 x 21.00
686 x 533
3.00
76
5 Large
A36H3012SSLP 36.00 x 30.00 x 12.00
914 x 762 x 305
304 A36P30 A36P30G A36P30SS6 33.00 x 27.00
838 x 686
3.00
76
7 Large
A36H3012SS6LP 36.00 x 30.00 x 12.00
914 x 762 x 305
316L A36P30 A36P30G A36P30SS6 33.00 x 27.00
838 x 686
3.00
76
7 Large
A36H3612SSLP 36.00 x 36.00 x 12.00
914 x 914 x 305
304 A36P36 A36P36G A36P36SS6 33.00 x 33.00
838 x 838
3.00
76
7 Large
A36H3612SS6LP 36.00 x 36.00 x 12.00
914 x 914 x 305
316L A36P36 A36P36G A36P36SS6 33.00 x 33.00
838 x 838
3.00
76
7 Large
A48H3612SSLP 48.00 x 36.00 x 12.00
1219 x 914 x 305
304 A48P36 A48P36G A48P36SS6 45.00 x 33.00
1143 x 838
3.00
76
8 Large
A48H3612SS6LP 48.00 x 36.00 x 12.00
1219 x 914 x 305
316L A48P36 A48P36G A48P36SS6 45.00 x 33.00
1143 x 838
3.00
76
8 Large
A60H3612SSLP 60.00 x 36.00 x 12.00
1524 x 914 x 305
304 A60P36 A60P36G A60P36SS6 57.00 x 33.00
1448 x 838
3.00
76
9 Large
A60H3612SS6LP 60.00 x 36.00 x 12.00
1524 x 914 x 305
316L A60P36 A60P36G A60P36SS6 57.00 x 33.00
1448 x 838
3.00
76
9 Large
A30H2416SSLP 30.00 x 24.00 x 16.00
762 x 610 x 406
304 A30P24 A30P24G A30P24SS6 27.00 x 21.00
686 x 533
3.00
76
5 Large
A30H2416SS6LP 30.00 x 24.00 x 16.00
762 x 610 x 406
316L A30P24 A30P24G A30P24SS6 27.00 x 21.00
686 x 533
3.00
76
5 Large
A36H3016SSLP 36.00 x 30.00 x 16.00
914 x 762 x 406
304 A36P30 A36P30G A36P30SS6 33.00 x 27.00
838 x 686
3.00
76
7 Large
A36H3016SS6LP 36.00 x 30.00 x 16.00
914 x 762 x 406
316L A36P30 A36P30G A36P30SS6 33.00 x 27.00
838 x 686
3.00
76
7 Large
A48H3616SSLP 48.00 x 36.00 x 16.00
1219 x 914 x 406
304 A48P36 A48P36G A48P36SS6 45.00 x 33.00
1143 x 838
3.00
76
8 Large
A48H3616SS6LP 48.00 x 36.00 x 16.00
1219 x 914 x 406
316L A48P36 A48P36G A48P36SS6 45.00 x 33.00
1143 x 838
3.00
76
8 Large
A60H3616SSLP 60.00 x 36.00 x 16.00
1524 x 914 x 406
304 A60P36 A60P36G A60P36SS6 57.00 x 33.00
1448 x 838
3.00
76
9 Large
A60H3616SS6LP 60.00 x 36.00 x 16.00
1524 x 914 x 406
316L A60P36 A60P36G A60P36SS6 57.00 x 33.00
1448 x 838
3.00
76
9 Large
Purchase panels separately. Optional composite and aluminum panels are available for most sizes.
Industrial+Automation+Supply!–!www.iasinc.com!,!Tel:!800,736,2345!

PH 763.422.2211 • FAX 763.422.2600 • PENTAIRPROTECT.COMEQUIPMENT PROTECTION STAINLESS STEEL 171
2
WALLMOUNT ENCLOSURES Wall-mount enClosures and aCCessories
Popular Cooling Products
Enclosure Depth (C Dimension) Thermoelectric Controller
6 in. (152 mm) TE090624011
8 in. (203 mm) TE162024011
10 in. (254 mm) TE162024011
12 in. (305 mm) TE162024011
16 in. (406 mm) TE162024011
*Important: Visit tools.hoffmanonline.com/attachments to access our Cooling Selection Tool to determne the appropriate cooling solution for your application.
Popular Accessories
Enclosure Width (B Dimension) Lights Hole Seals Window Kits
12 in. (305 mm) LEDPUCK AS050SS APWK53NFSS
16 in. (406 mm) LEDA2M35 AS050SS APWK53NFSS
20 in. (508 mm) LED24V15 AS050SS APWK53NFSS
24 in. (610 mm) LED24V15 AS050SS APWK53NFSS
30 in. (762 mm) LED24V15 AS050SS APWK53NFSS
36 in. (914 mm) LED24V15 AS050SS APWK53NFSS
Industrial+Automation+Supply!–!www.iasinc.com!,!Tel:!800,736,2345!

EQUIPMENT PROTECTIONSUBJECT TO CHANGE WITHOUT NOTICESTAINLESS STEEL172
2
WALLMOUNT ENCLOSURES Wall-mount enClosures and aCCessories
CONTINUOUS HINGE WITH CLAMPS, EMC, TYPE 4X
INDUSTRY STANDARDS
UL 508A Listed; Type 4, 4X, 12; File No. E61997
cUL Listed per CSA C22.2 No 94; Type 4, 4X, 12; File No. E61997
NEMA/EEMAC Type 3, 4, 4X, 12, 13
CSA File No. 42186: Type 4, 4X, 12
IEC 60529, IP66
APPLICATION
Ideal for indoor or outdoor EMC applications to contain larger
controls in corrosive environments. Features a stainless steel,
woven-mesh encased gasket to keep out contaminants and provide
EMI/RFI shielding to internal components.
SPECIFICATIONS
• 14 gauge Type 304 stainless steel bodies and doors
• Seams continuously welded and ground smooth
• Seamless foam-in-place gasket adjacent to woven monel EMC
mesh gasket
• Rolled lip around three sides of door
• Stainless steel door clamp assemblies
• Hasp and staple for padlocking
• Removable door with continuous hinge
• Data pocket is high impact thermoplastic
• Collar studs provided for mounting optional panels
• Bonding provision on door; grounding stud on body
FINISH
Door, sides, top and bottom have a smooth brushed #4 finish.
ACCESSORIES
See also Accessories.
Fast-Operating Clamp Assembly
PANELITE™ Enclosure Lights Overview
Panels for Type 3R, 4, 4X, 12 and 13 Enclosures
Rack Mounting Angle Kit - L Style
Junction Box and Wall-Mount Enclosure Swing Out Panel Kit
Terminal Block Kit Assembly for Junction Boxes Overview
BULLETIN: A4SEM
Standard Product
Catalog Number AxBxC in./mm
Conductive
Steel Panel
Panel Size
D x E
in./mm
F
in./mm
Clamps
Qty. Data Pocket
A161206LPEMCSS 16.00 x 12.00 x 6.00
406 x 305 x 152
A16P12G 13.00 x 9.00
330 x 229
1.25
32
4 Small
A201606LPEMCSS 20.00 x 16.00 x 6.00
508 x 406 x 152
A20P16G 17.00 x 13.00
432 x 330
3.00
76
4 Small
A242006LPEMCSS 24.00 x 20.00 x 6.00
610 x 508 x 152
A24P20G 21.00 x 17.00
533 x 432
3.00
76
5 Small
A242408LPEMCSS 24.00 x 24.00 x 8.00
610 x 610 x 203
A24P24G 21.00 x 21.00
533 x 533
3.00
76
5 Small
A302408LPEMCSS 30.00 x 24.00 x 8.00
762 x 610 x 203
A30P24G 27.00 x 21.00
686 x 533
3.00
76
5 Large
A363008LPEMCSS 36.00 x 30.00 x 8.00
914 x 762 x 203
A36P30G 33.00 x 27.00
838 x 686
3.00
76
7 Large
A483608LPEMCSS 48.00 x 36.00 x 8.00
1219 x 914 x 203
A48P36G 45.00 x 33.00
1143 x 838
3.00
76
8 Large
A603612LPEMCSS 60.00 x 36.00 x 12.00
1524 x 914 x 305
A60P36G 57.00 x 33.00
1448 x 838
3.00
76
9 Large
Purchase panels separately. Optional conductive, mild steel, stainless steel, aluminum and composite panels are available for most sizes. See Accessories.
Industrial+Automation+Supply!–!www.iasinc.com!,!Tel:!800,736,2345!

EQUIPMENT PROTECTIONSUBJECT TO CHANGE WITHOUT NOTICESTAINLESS STEEL174
2
WALLMOUNT ENCLOSURES Wall-mount enClosures and aCCessories
CONTINUOUS HINGE TWODOOR WITH 3POINT LATCH, TYPE 4X
INDUSTRY STANDARDS
UL 508A Listed; Type 3R, 4, 4X, 12; File No. E61997
cUL Listed per CSA C22.2 No 94; Type 3R, 4, 4X, 12; File Number
E61997
NEMA Type 3, 3R, 4, 4X, 12, 13
IEC 60529, IP66
Meets NEMA Type 3RX requirements
APPLICATION
These two-door wall-mount enclosures provide industry-leading
protection for components in corrosive or wet environments.
Enclosures have a removable centerpost for easy panel installation,
3-point latching with Hoffman’s exclusive POWERGLIDE™ Handles,
and a seamless foam-in-place gasket for sealing protection from
contaminants.
SPECIFICATIONS
• Manufactured from 14 gauge Type 304 stainless steel
• Seams continuously welded and ground smooth
• Removable centerpost for easy panel installation
• Flange trough collar around all sides of enclosure door openings
• External mounting brackets
• Heavy-duty 3-point latching mechanism operated by Type 316
stainless steel POWERGLIDE padlocking handles
• Easily removable doors by pulling heavy gauge continuous hinge
pin
• Data pocket is high-impact thermoplastic
• Seamless foam-in-place gasket
• Collar studs provided for mounting optional panels
• Bonding provisions on doors; grounding studs on body
FINISH
Doors, sides, top and bottom have smooth #4 brushed finish.
ACCESSORIES
See also Accessories.
Floor Stand Kit, Stainless Steel
PANELITE™ Enclosure Lights Overview
Panels for Type 3R, 4, 4X, 12 and 13 Enclosures
Steel and Stainless Steel Window Kits
H2OMIT™ Vent Drains, Type 4X
H2OMIT™ Thermoelectric Dehumidifier
MODIFICATION AND CUSTOMIZATION
Hoffman excels at modifying and customizing products to your
specifications. Contact your local Hoffman sales office or distributor
for complete information.
BULLETIN: A4SW
Standard Product
Catalog Number AxBxC in./mm Mild Steel Panel Conductive Panel
Panel
Gauge
Panel Size D x E
in./mm
Y
in./mm
A24H4208WFSSLP3PT 24.00 x 42.00 x 8.00
610 x 1067 x 203
A42P24 A42P24G 12 39.00 x 21.00
991 x 533
1.50
38
A24H4808WFSSLP3PT 24.00 x 48.00 x 8.00
610 x 1219 x 203
A48P24 A48P24G 12 45.00 x 21.00
1143 x 533
1.50
38
A30H4210WFSSLP3PT 30.00 x 42.00 x 10.00
762 x 1067 x 254
A42P30 A42P30G 12 39.00 x 27.00
991 x 686
1.50
38
A30H4810WFSSLP3PT 30.00 x 48.00 x 10.00
762 x 1219 x 254
A48P30 A48P30G 12 45.00 x 27.00
1143 x 686
1.50
38
A30H6010WFSSLP3PT 30.00 x 60.00 x 10.00
762 x 1524 x 254
A60P30 A60P30G 12 57.00 x 27.00
1448 x 686
1.50
38
A36H4212WFSSLP3PT 36.00 x 42.00 x 12.00
914 x 1067 x 305
A42P36 A42P36G 12 39.00 x 33.00
991 x 838
1.50
38
A36H4812WFSSLP3PT 36.00 x 48.00 x 12.00
914 x 1219 x 305
A48P36 A48P36G 12 45.00 x 33.00
1143 x 838
1.50
38
A36H6012WFSSLP3PT 36.00 x 60.00 x 12.00
914 x 1524 x 305
A60P36 A60P36G 12 57.00 x 33.00
1448 x 838
1.50
38
A42H4212WFSSLP3PT 42.00 x 42.00 x 12.00
1067 x 1067 x 305
A42P42 A42P42G 12 39.00 x 39.00
991 x 991
1.50
38
A42H4812WFSSLP3PT 42.00 x 48.00 x 12.00
1067 x 1219 x 305
A48P42 A48P42G 12 45.00 x 39.00
1143 x 991
1.50
38
A42H6012WFSSALP3PT 42.00 x 60.00 x 12.00
1067 x 1524 x 305
A60BFP42 A60BFP42G 10 56.00 x 38.00
1422 x 965
2.00
51
A48H4812WFSSLP3PT 48.00 x 48.00 x 12.00
1219 x 1219 x 305
A48P48 A48P48G 10 44.00 x 44.00
1118 x 1118
2.00
51
Purchase panels separately. Optional stainless steel panels are available for most sizes.
Enclosure backs for A42H4212WFSSLP3PT, A42H4812WFSSLP3PT and A42H6012WFSSALP3PT have internal stiffeners.
A48H4812WFSSLP3PT is 14 gauge with a 12 gauge back.
Industrial+Automation+Supply!–!www.iasinc.com!,!Tel:!800,736,2345!

PH 763.422.2211 • FAX 763.422.2600 • PENTAIRPROTECT.COMEQUIPMENT PROTECTION STAINLESS STEEL 175
2
WALLMOUNT ENCLOSURES Wall-mount enClosures and aCCessories
CONTINUOUS HINGE TWODOOR WITH 3POINT LATCH, TYPE 12
INDUSTRY STANDARDS
UL 508A Listed; Type 12; File No. E61997
cUL Listed per CSA C22.2 No 94; Type 12; File No. E61997
NEMA/EEMAC Type 12
CSA File No. 42186: Type 12
IEC 60529, IP55
APPLICATION
For indoor applications requiring stainless steel, enclosure features
overlapping doors and a centerpost-free interior for easy panel and
component installation. The enclosure is secured by a single key-
locking handle and three-point latching.
SPECIFICATIONS
• 14 gauge Type 304 stainless steel
• Seams continuously welded and ground smooth
• Rolled lip around all sides of enclosure body opening
• Gasketed overlapping doors eliminate need for centerpost
• External mounting brackets
• Plated steel 3-point latching mechanism and keylocking handle
• Easily removable doors by pulling heavy-gauge continuous hinge
pin
• Data pocket is high-impact thermoplastic
• Collar studs provided for mounting optional panels
• Bonding provision on doors; grounding studs on body
FINISH
Doors, sides, top and bottom have smooth #4 brushed finish.
ACCESSORIES
See also Accessories.
Floor Stand Kit, Stainless Steel
PANELITE™ Enclosure Lights Overview
Panels for Type 3R, 4, 4X, 12 and 13 Enclosures
Steel and Stainless Steel Window Kits
H2OMIT™ Vent Drains, Type 4X
H2OMIT™ Thermoelectric Dehumidifier
MODIFICATION AND CUSTOMIZATION
Hoffman excels at modifying and customizing products to your
specifications. Contact your local Hoffman sales office or distributor
for complete information.
BULLETIN: A12SW
Industrial+Automation+Supply!–!www.iasinc.com!,!Tel:!800,736,2345!

EQUIPMENT PROTECTIONSUBJECT TO CHANGE WITHOUT NOTICESTAINLESS STEEL176
2
WALLMOUNT ENCLOSURES Wall-mount enClosures and aCCessories
Standard Product
Catalog Number AxBxC in./mm Panel Conductive Panel
Panel
Gauge
Panel Size D x E
in./mm
Y
in./mm
A244208WFSSLP 24.00 x 42.00 x 8.00
610 x 1067 x 203
A42P24 A42P24G 12 39.00 x 21.00
991 x 533
1.50
38
A244808WFSSLP 24.00 x 48.00 x 8.00
610 x 1219 x 203
A48P24 A48P24G 12 45.00 x 21.00
1143 x 533
1.50
38
A304210WFSSLP 30.00 x 42.00 x 10.00
762 x 1067 x 254
A42P30 A42P30G 12 39.00 x 27.00
991 x 686
1.50
38
A304810WFSSLP 30.00 x 48.00 x 10.00
762 x 1219 x 254
A48P30 A48P30G 12 45.00 x 27.00
1143 x 686
1.50
38
A306010WFSSLP 30.00 x 60.00 x 10.00
762 x 1524 x 254
A60P30 A60P30G 12 57.00 x 27.00
1448 x 686
1.50
38
A364212WFSSLP 36.00 x 42.00 x 12.00
914 x 1067 x 305
A42P36 A42P36G 12 39.00 x 33.00
991 x 838
1.50
38
A364812WFSSLP 36.00 x 48.00 x 12.00
914 x 1219 x 305
A48P36 A48P36G 12 45.00 x 33.00
1143 x 838
1.50
38
A366012WFSSLP 36.00 x 60.00 x 12.00
914 x 1524 x 305
A60P36 A60P36G 12 57.00 x 33.00
1448 x 838
1.50
38
A424212WFSSLP 42.00 x 42.00 x 12.00
1067 x 1067 x 305
A42P42 A42P42G 12 39.00 x 39.00
991 x 991
1.50
38
A424812WFSSLP 42.00 x 48.00 x 12.00
1067 x 1219 x 305
A48P42 A48P42G 12 45.00 x 39.00
1143 x 991
1.50
38
A426012WFSSALP 42.00 x 60.00 x 12.00
1067 x 1524 x 305
A60BFP42 A60BFP42G 10 56.00 x 38.00
1422 x 965
2.00
51
A484812WFSSLP 48.00 x 48.00 x 12.00
1219 x 1219 x 305
A48P48 A48P48G 10 44.00 x 44.00
1118 x 1118
2.00
51
Purchase panels separately. Optional stainless steel and aluminum panels are available for most sizes.
A424212WFSSLP, A424812WFSSLP, A426012WFSSALP enclosure backs have internal stiffeners.
A484812WFSSLP back is 12 gauge.
Industrial+Automation+Supply!–!www.iasinc.com!,!Tel:!800,736,2345!

EQUIPMENT PROTECTIONSUBJECT TO CHANGE WITHOUT NOTICESTAINLESS STEEL178
2
WALLMOUNT ENCLOSURES Wall-mount enClosures and aCCessories
REPLACEMENT DOOR WITH 3POINT LATCH, TYPE 4X
INDUSTRY STANDARDS
Maintains NEMA Type 4X rating when properly installed on Hoffman
SSLP clamp cover or SSLP3PT stainless steel wall-mount enclosures.
APPLICATION
Replacement door for SSLP and SSLP3PT style enclosures.
Maintains NEMA Type 4X rating and converts clamp covers to a
3-point latch. Replacement door is ideal for corrosive enclosure
installations that require frequent access and the security of a
POWERGLIDE™ padlocking handle.
SPECIFICATIONS
• 14 gauge Type 304 or Type 316L stainless steel material
• Seamless foam-in-place gasket
• Type 316L stainless steel POWERGLIDE handle
• Internal 3-point latching hardware installed
• Data pocket is high-impact thermoplastic
• Hinge halves and stainless steel hinge pin
• Bonding provision
FINISH
Door has a smooth #4 brushed finish on the exterior. The Type 316L
stainless steel handle is electropolished.
MODIFICATION AND CUSTOMIZATION
Hoffman excels at modifying and customizing products to your
specifications. Contact your local Hoffman sales office or distributor
for complete information.
BULLETIN: A4SW3, A4SY
Standard Product
Catalog Number Material Fits (in.)
Z24208SS3PT 304 A = 24.00, B = 20.00
Z24208SS63PT 316L A = 24.00, B = 20.00
Z24248SS3PT 304 A = 24.00, B = 24.00
Z24248SS63PT 316L A = 24.00, B = 24.00
Z30248SS3PT 304 A = 30.00, B = 24.00
Z30248SS63PT 316L A = 30.00, B = 24.00
Z36248SS3PT 304 A = 36.00, B = 24.00
Z36248SS63PT 316L A = 36.00, B = 24.00
Z36308SS3PT 304 A = 36.00, B = 30.00
Z36308SS63PT 316L A = 36.00, B = 30.00
Z36368SS3PT 304 A = 36.00, B = 36.00
Z36368SS63PT 316L A = 36.00, B = 36.00
Z48368SS3PT 304 A = 48.00, B = 36.00
Z48368SS63PT 316L A = 48.00, B = 36.00
Z60368SS3PT 304 A = 60.00, B = 36.00
Z60368SS63PT 316L A = 60.00, B = 36.00
Industrial+Automation+Supply!–!www.iasinc.com!,!Tel:!800,736,2345!

EQUIPMENT PROTECTIONSUBJECT TO CHANGE WITHOUT NOTICESTAINLESS STEEL180
2
WALLMOUNT ENCLOSURES Wall-mount enClosures and aCCessories
PAINTED WHITE WITH 3POINT LATCH, TYPE 4X
INDUSTRY STANDARDS
UL 508A Listed; Type 3R, 4, 4X, 12; File No. E61997
cUL Listed per CSA C22.2 No 94; Type 3R, 4, 4X, 12; File No.
E61997
NEMA/EEMAC Type 3R, 4, 4X, 12, 13
IEC 60529, IP66
Meets NEMA Type 3RX requirements
APPLICATION
These single-door stainless steel enclosures provide industry-
leading protection for housing electrical components and controls
in outdoor or corrosive environments. White polyester powder
reduces absorption of solar radiation, which keeps internal
components cooler. Hoffman’s exclusive Type 316L stainless steel
small POWERGLIDE™ padlocking handle and internal 3-point
latching combine ease of access with security.
SPECIFICATIONS
• 14 gauge Type 304 stainless steel bodies and doors
• Seams continuously welded and ground smooth
• Type 4-rated gasket
• 90-degree external formed flange on top of body opening
• Type 316L stainless steel padlocking POWERGLIDE Handle and
3-point latching
• Door removed by pulling stainless steel continuous hinge pin
• Data pocket is high-impact thermoplastic
• Collar studs provided for mounting optional panels
FINISH
Enclosures have white polyester powder paint finish inside and out.
Handle is electropolished.
ACCESSORIES
See also Accessories.
PANELITE™ Enclosure Lights Overview
Panels for Type 3R, 4, 4X, 12 and 13 Enclosures
Junction Box and Wall-Mount Enclosure Swing Out Panel Kit
Steel and Stainless Steel Window Kits
H2OMIT™ Vent Drains, Type 4X
H2OMIT™ Thermoelectric Dehumidifier
MODIFICATION AND CUSTOMIZATION
Hoffman excels at modifying and customizing products to your
specifications. Contact your local Hoffman sales office or distributor
for complete information.
BULLETIN: A4SW3
Standard Product
Catalog Number AxBxC in./mm
F
in./mm Steel Panel
Conductive
Panel
Stainless Steel
Panel
Panel Size D x E
in./mm Data Pocket
A24H2408SSLP3PTW 24.00 x 24.00 x 8.00
610 x 610 x 203
3.00
76
A24P24 A24P24G A24P24SS6 21.00 x 21.00
533 x 533
Small
A30H2408SSLP3PTW 30.00 x 24.00 x 8.00
762 x 610 x 203
3.00
76
A30P24 A30P24G A30P24SS6 27.00 x 21.00
686 x 533
Large
A24H2010SSLP3PTW 24.00 x 20.00 x 10.00
610 x 508 x 254
3.00
76
A24P20 A24P20G A24P20SS6 21.00 x 17.00
533 x 432
Small
A24H2412SSLP3PTW 24.00 x 24.00 x 12.00
610 x 610 x 305
3.00
76
A24P24 A24P24G A24P24SS6 21.00 x 21.00
533 x 533
Small
A36H3012SSLP3PTW 36.00 x 30.00 x 12.00
914 x 762 x 305
3.00
76
A36P30 A36P30G A36P30SS6 33.00 x 27.00
838 x 686
Large
A36H3612SSLP3PTW 36.00 x 36.00 x 12.00
914 x 914 x 305
3.00
76
A36P36 A36P36G A36P36SS6 33.00 x 33.00
838 x 838
Large
A42H3612SSLP3PTW 42.00 x 36.00 x 12.00
1067 x 914 x 305
3.00
76
A42P36 A42P36G A42P36SS6 39.00 x 33.00
911 x 838
Large
A48H3612SSLP3PTW 48.00 x 36.00 x 12.00
1219 x 914 x 305
3.00
76
A48P36 A48P36G A48P36SS6 45.00 x 33.00
1143 x 838
Large
A60H3612SSLP3PTW 60.00 x 36.00 x 12.00
1524 x 914 x 305
3.00
76
A60P36 A60P36G A60P36SS6 57.00 x 33.00
1448 x 838
Large
A48H3616SSLP3PTW 48.00 x 36.00 x 16.00
1219 x 914 x 406
3.00
76
A48P36 A48P36G A48P36SS6 45.00 x 33.00
1143 x 838
Large
Purchase panels separately. Optional stainless steel, composite and aluminum panels are available for most sizes.
Panels have a formed flange along any side longer than 21.00 in. (533 mm). Panel A24P20 has a flange on all four sides.
Industrial+Automation+Supply!–!www.iasinc.com!,!Tel:!800,736,2345!

PH 763.422.2211 • FAX 763.422.2600 • PENTAIRPROTECT.COMEQUIPMENT PROTECTION STAINLESS STEEL 181
2
WALLMOUNT ENCLOSURES Wall-mount enClosures and aCCessories
Internal Temperature °F
Date/Time
7/22/0
2:00 PM
7/22/00
1:00 PM
7/22/00
12:0 0 PM
7/22/00
11 :0 0 AM
Internal Enclosure Temp erature above Outsid e Ambient
Fiberglass
Whit e
Black
RAL 7035
Stainless
ANSI 61
Aluminum
0
5
10
15
20
25
30
35
Temperature Rise Example
Industrial+Automation+Supply!–!www.iasinc.com!,!Tel:!800,736,2345!

EQUIPMENT PROTECTIONSUBJECT TO CHANGE WITHOUT NOTICESTAINLESS STEEL182
2
WATERSHED™ WALLMOUNT ENCLOSURES AND ACCESSORIES WatersHed™ Wall-mount enClosures and aCCessories
WATERSHED™ WALL-MOUNT ENCLOSURES AND ACCESSORIES
WATERSHED™ WALL-MOUNT EN CLOSURES AN D ACCESSORI ES
HOFFMAN WATERSHED™, TYPE 4X
INDUSTRY STANDARDS
Mounting brackets required to meet UL/cUL external mounting
requirement.
UL 508A Listed; Type 4, 4X, 12; File Number E61997
cUL Listed per CSA C22.2 No 94; Type 4, 4X, 12; File Number
E61997
NSF 169
NEMA/EEMAC Type 4, 4X, 12
IEC 60529, IP66
APPLICATION
Specifically designed for use in sanitary washdown production
environments, particularly food and beverage manufacturing.
Hoffman WATERSHED™ Enclosures feature a sloped top, sloped
door edges, bullet-style hinges and additional unique features that
facilitate washdown runoff.
SPECIFICATIONS
• Manufactured from 14 gauge Type 304 stainless steel
• Seams continuously welded and ground smooth
• Smooth Type 304 stainless steel lift-off bullet-style hinges
• Hinges are shielded by door
• Hinged side of door has provisions to allow direct flushing of
hinge area
• 20-degree sloped top facilitates runoff of water and cleaning
solutions and prohibits the placement of objects on the top of the
enclosure
• 170-degree door opening
• Door edges are sloped 20-degrees at top and bottom edges to
facilitate runoff
• Slanted flange trough collar prohibits pooling of fluids along the
top edge of the enclosure opening
• Stainless steel quarter-turn latches furnished with flush slotted
insert
• Seamless foam-in-place gasket
• Self-grounding latch system with double seal
• Bonding provision on door; grounding stud on body
• Panel studs fit optional NEMA style panels
• Mounting holes in back of body for direct mounting, optional
stand-off kit or mounting bracket kit
• Furnished hardware kit consists of panel mounting nuts,
grounding hardware and sealing washers for wall-mounting
holes
FINISH
External surfaces have a #4 brushed finish.
ACCESSORIES
See also Accessories.
Mounting Bracket Kit
Panels for Type 3R, 4, 4X, 12 and 13 Enclosures
Stand-Off Kit
Padlocking Handle Kit
Padlocking Latch Kit
H2OMITTM Vent Drains, Type 4X
H2OMITTM Thermoelectric Dehumidifier
BULLETIN: WS1
Industrial+Automation+Supply!–!www.iasinc.com!,!Tel:!800,736,2345!

PH 763.422.2211 • FAX 763.422.2600 • PENTAIRPROTECT.COMEQUIPMENT PROTECTION STAINLESS STEEL 183
2
WATERSHED™ WALLMOUNT ENCLOSURES AND ACCESSORIES WatersHed™ Wall-mount enClosures and aCCessories
Standard Product
Catalog Number AxBxC in./mm Panel
Conductive
Panel
A1
in./mm
A2
in./mm
G
in./mm
H
in./mm
Latch
Qty.
WS161208SS 16.00 x 12.00 x 8.00
406 x 305 x 203
A16P12 A16P12G 16.20
411
19.10
485
10.50
267
14.50
368
2
WS161608SS 16.00 x 16.00 x 8.00
406 x 406 x 203
A16P16 A16P16G 16.30
414
19.20
488
14.50
368
14.50
368
2
WS201608SS 20.00 x 16.00 x 8.00
508 x 406 x 203
A20P16 A20P16G 20.30
516
23.20
589
14.50
368
18.50
470
2
WS202008SS 20.00 x 20.00 x 8.00
508 x 508 x 203
A20P20 A20P20G 20.40
518
23.31
592
18.50
470
18.50
470
2
WS242008SS 24.00 x 20.00 x 8.00
610 x 508 x 203
A24P20 A24P20G 24.40
620
27.31
694
18.50
470
22.50
572
2
WS242408SS 24.00 x 24.00 x 8.00
610 x 610 x 203
A24P24 A24P24G 24.51
623
27.41
696
22.50
572
22.50
572
4
WS302408SS 30.00 x 24.00 x 8.00
762 x 610 x 203
A30P24 A30P24G 30.51
785
33.41
849
22.50
572
28.50
724
4
WS303008SS 30.00 x 30.00 x 8.00
762 x 762 x 203
A30P30 A30P30G 30.67
779
33.57
853
28.50
724
28.50
724
4
WS363008SS 36.00 x 30.00 x 8.00
914 x 762 x 203
A36P30 A36P30G 36.67
931
39.57
1005
28.50
724
34.50
876
5
WS201612SS 20.00 x 16.00 x 12.00
508 x 406 x 305
A20P16 A20P16G 20.30
516
24.66
626
14.50
368
18.50
470
2
WS202012SS 20.00 x 20.00 x 12.00
508 x 508 x 305
A20P20 A20P20G 20.40
518
24.76
629
18.50
470
18.50
470
2
WS242412SS 24.00 x 24.00 x 12.00
610 x 610 x 305
A24P24 A24P24G 24.51
623
28.87
733
22.50
572
22.50
572
4
WS302412SS 30.00 x 24.00 x 12.00
762 x 610 x 305
A30P24 A30P24G 30.51
775
34.87
886
22.50
572
28.50
724
4
WS363012SS 36.00 x 30.00 x 12.00
914 x 762 x 305
A36P30 A36P30G 36.67
931
41.03
1042
28.50
724
34.50
876
5
WS363612SS 36.00 x 36.00 x 12.00
914 x 914 x 305
A36P36 A36P36G 36.82
935
41.18
1046
34.50
876
34.50
876
5
WS363016SS 36.00 x 30.00 x 16.00
914 x 762 x 406
A36P30 A36P30 36.82
935
42.64
1083
28.50
724
34.50
876
5
WS483616SS 48.00 x 36.00 x 16.00
1219 x 914 x 406
A48P36 A48P36G 48.82
1240
54.64
1388
34.50
876
46.50
1181
5
WS603616SS 60.00 x 36.00 x 16.00
1524 x 914 x 406
A60P36 A60P36G 60.82
1545
66.64
1693
34.50
876
58.50
1486
5
Purchase panels separately. Optional stainless steel, conductive or aluminum panels are available.
WS603616SS back is 10 gauge stainless steel.
Industrial+Automation+Supply!–!www.iasinc.com!,!Tel:!800,736,2345!

EQUIPMENT PROTECTIONSUBJECT TO CHANGE WITHOUT NOTICESTAINLESS STEEL184
2
WATERSHED™ WALLMOUNT ENCLOSURES AND ACCESSORIES WatersHed™ Wall-mount enClosures and aCCessories
MOUNTING BRACKET KIT Type 304 stainless steel brackets are field-installable. Brackets
maintain Type 4X rating. All hardware is included. Four brackets per
kit.
Top brackets must be mounted to the sides of enclosure.
BULLETIN: A80
Catalog Number Description
CMFKSS Type 304 stainless steel mounting bracket kit
STANDOFF KIT Stand-offs provide space between wall-mount enclosure and wall
for better washdown accessibility. Maintains Type 4X rating. Sealing
washers included. Four stand-offs per kit.
BULLETIN: WSY
Catalog Number C (in.) C (mm)
WSSOK1SS 1.00 25
WSSOK2SS 2.00 51
WSSOK4SS 4.00 102
WSSOK6SS 6.00 152
PADLOCKING HANDLE KIT Type 304 stainless steel padlocking handle for use on Hoffman
WATERSHED™ Wall-Mount Enclosures. Maintains Type 4X rating.
BULLETIN: WSY
Catalog Number Description
WSHPL Stainless Steel Padlocking Handle
PADLOCKING LATCH KIT Type 304 stainless steel padlocking latch for use on Hoffman
WATERSHED™ Wall-Mount Enclosures. Maintains Type 4X rating.
BULLETIN: WSY
Catalog Number Description
WSLPL Padlocking Latch Kit
Industrial+Automation+Supply!–!www.iasinc.com!,!Tel:!800,736,2345!

EQUIPMENT PROTECTIONSUBJECT TO CHANGE WITHOUT NOTICESTAINLESS STEEL186
2
CONSOLES AND ACCESSORIES Consoles and aCCessories
CONSOLES AND ACCESSORIES
CONSOLES AND ACCESSORIES
CONCEPT™ CONSOLE, TYPE 4X
INDUSTRY STANDARDS
UL 508A Listed; Type 3R, 4, 4X, 12; File No. E61997
cUL Listed per CSA C22.2 No 94; Type 3R, 4, 4X, 12; File No.
E61997
NEMA Type 3R, 4, 4X, 12, 13
CSA File No. 42186: Type 4, 4X, 12
Meets NEMA Type 3RX requirements
APPLICATION
Sloped CONCEPT™ Consoles provide a convenient surface for
mounting and monitoring components. Ergonomically designed
so users can sit or stand while working, consoles feature a large
internal capacity for mounting components and controls.
SPECIFICATIONS
• 14 gauge Type 304 stainless steel
• Ergonomically designed for sitting or standing operation
• Solid bottom
• Corner-formed doors
• External-formed 90-degree body flange
• 20-degree sloped-top cover for 38.00-in. (965-mm) tall console
or 30-degree top cover for 48.00-in. (1219-mm) console
• Quarter-turn stainless steel latches hold top cover securely
closed
• Door props hold top cover open at 90-degrees
• Integral water-shedding trough
• Collar studs for optional back panel
• Optional side panels (mounted to collar studs) expand equipment
mounting space
• Tool-to-open 3-point latch on front access door; door is
removable and reversible; 170-degree full-access opening
• Seamless foam-in-place gasket
• Bonding provision on door; grounding stud on body
• Provision for data pocket on lower front door
• Easy-to-remove clip-style hinge pins
FINISH
Doors and body have smooth #4 brushed finish.
ACCESSORIES
See also Accessories.
Caster Kit
Side Panels
MODIFICATION AND CUSTOMIZATION
Hoffman excels at modifying and customizing products to your
specifications. Contact your local Hoffman sales office or distributor
for complete information.
BULLETIN: C1S
Standard Product
Catalog Number AxBxC in./mm
Back
Panel
Conductive
Panel
Back Panel
Height x Width
in./mm
F
in./mm
P
in./mm
Q
in./mm
R
in./mm
S
in./mm
T
in./mm
U
in./mm V
W
in./mm
Data
Pocket
CFC382416SS 38.00 x 24.00 x 15.00
965 x 610 x 381
CP3624 CP3624G 34.20 x 22.20
869 x 564
14.57
370
22.40
569
18.40
467
22.37
568
30.44
773
19.82
503
3.79
96
20º 20.00
508
Small
CFC383616SS 38.00 x 36.00 x 15.00
965 x 914 x 381
CP3636 CP3636G 34.20 x 34.20
869 x 869
14.57
370
34.40
874
18.40
467
22.37
568
30.44
773
19.82
503
3.79
96
20º 20.00
508
Large
CFC482423SS 48.00 x 24.00 x 18.00
1219 x 610 x 457
CP2442 CP2442G 40.20 x 22.20
1021 x 564
17.57
446
22.40
569
23.36
593
28.35
720
35.35
898
23.84
606
2.54
64
30º 24.00
610
Large
CFC483623SS 48.00 x 36.00 x 18.00
1219 x 914 x 457
CP4236 CP4236G 40.20 x 34.20
1021 x 869
17.57
446
34.40
874
23.36
593
28.35
720
35.35
898
23.84
606
2.54
64
30º 24.00
610
Large
Order Back Panel and Data Pocket separately.
Industrial+Automation+Supply!–!www.iasinc.com!,!Tel:!800,736,2345!

PH 763.422.2211 • FAX 763.422.2600 • PENTAIRPROTECT.COMEQUIPMENT PROTECTION STAINLESS STEEL 187
2
CONSOLES AND ACCESSORIES Consoles and aCCessories
3
3
%
PP
PP
PP
;;
'RRU
*URXQGLQJ
3URYLVLRQ
%RG\
*URXQGLQJ
6WXG
%RG\
*URXQGLQJ
6WXG
'RRU
*URXQGLQJ
3URYLVLRQ
'RRU
&OHDU
6SDFH
2SHQLQJ
2SHQLQJ
4
7
8
5
6
$
&
PP
9
:
:
2SHQLQJ
2SHQLQJ
%
PP
PP
PP
PP
9,(:::
'RRU
&OHDU
6SDFH
7ZR'RRU6WRSV
:KHQ%
PP
+LQJH
6LGH
)
PP
6(&7,21;;
%DFNDQG6LGH3DQHOV
2UGHU6HSDUDWHO\
CASTER KIT
Order two swivel caster kits or one
swivel caster kit plus one stationary
caster kit.
Height = 3.72 in. (94 mm)
Wheel diameter = 3.00 in. (76 mm)
Load rating each = 210 lb. (95 kg)
BULLETIN: C1
Catalog Number Description
AC4M6ST Caster kit, stationary (2 casters per kit)
AC4M6SV Caster lit, swivel (2 casters per kit)
CCPK18 Caster plate kit, 18 in., (2 plates per kit)
Order two swivel caster kits or one swivel caster kit plus one stationary caster kit.
SIDE PANELS
One panel per kit. Two kits required if a panel is needed on each
side.
BULLETIN: C1
Catalog Number
D
in./mm
E
in./mm
G
in./mm
CPC3816 27.15
690
13.65
347
4.33
110
CPC4823 31.57
802
16.65
423
3.54
40
Industrial+Automation+Supply!–!www.iasinc.com!,!Tel:!800,736,2345!

EQUIPMENT PROTECTIONSUBJECT TO CHANGE WITHOUT NOTICESTAINLESS STEEL188
2
FLOORMOUNT AND FREESTAND ENCLOSURES Floor-mount and Free-stand enClosures
FLOOR-MOUNT A ND FREE-STAND ENC LOSURES
FLOOR-MOUNT A ND FREE-STAND ENC LOSURES
TWODOOR WITH 3POINT LATCHES, TYPE 4X
INDUSTRY STANDARDS
UL 508A Listed; Type 3R, 4, 4X, 12; File No. E61997
cUL Listed per CSA C22.2 No 94; Type 3R, 4, 4X, 12; File No.
E61997
NEMA Type 3, 3R, 4, 4X, 12, 13
IEC 60529, IP66
Meets NEMA Type 3RX requirements
APPLICATION
These two-door enclosures provide industry-leading protection for
large components or complex mounting configurations in highly-
corrosive environments. Three-point latching with the Hoffman
POWERGLIDE™ padlocking handles and a foam-in-place gasket
combine convenience with security. They are well-suited for use in
petrochemical plants; pulp and paper processing; water treatment
facilities; and food, pharmaceutical and packaging applications.
SPECIFICATIONS
• Manufactured from 12 gauge Type 304 or 316L stainless steel
• Backs are 10 or 12 gauge stainless steel with x-form stiffeners
• Seams continuously welded and ground smooth; no holes or
knockouts
• Removable centerpost for easy panel installation
• Collar studs provided for mounting optional panels
• Panel supports included
• Heavy-duty lifting eyes are Type 316L stainless steel
• Heavy-duty 3-point latching mechanism operated by Type 316L
stainless steel POWERGLIDE padlocking handles
• Body flange trough collar excludes liquids and contaminants
• Heavy-duty stainless steel continuous hinges support each door
• Bonding provision on doors; grounding studs on body
• Accessory mounting channel provided in enclosure top
• Data pocket is high-impact thermoplastic
• 12-in. (305-mm) removable floor stands are bolted to enclosure
• Seamless foam-in-place one-piece gasket provides oil-tight and
dust-tight seal against contaminants
• External hardware manufactured of Type 316 stainless steel
FINISH
Enclosures are unpainted. Front, sides, top and back have smooth
#4 brushed finish. Optional mild steel panels are painted white.
Optional conductive panels are available.
ACCESSORIES
See also Accessosries.
Industrial Corrosion Inhibitors
Electric Heater
Electrical Interlocks
PANELITE™ Enclosure Lights Overview
Panel Support Kit
MODIFICATION AND CUSTOMIZATION
Hoffman excels at modifying and customizing products to your
specifications. Contact your local Hoffman sales office or distributor
for complete information.
BULLETIN: A4S3
Standard Product
Catalog Number AxBxC in. AxBxC mm Stainless Steel Type Panel Conductive Panel Panel Size D x E (in.) Panel Size D x E (mm)
A62H4812SSLP3PT 62.06 x 48.06 x 12.06 1576 x 1221 x 306 304 A60P48 A60P48G 56.00 x 44.00 1422 x 1118
A62H4812SS6LP3PT 62.06 x 48.06 x 12.06 1576 x 1221 x 306 316L A60P48 A60P48G 56.00 x 44.00 1422 x 1118
A62H6012SSLP3PT 62.06 x 60.06 x 12.06 1576 x 1526 x 306 304 A60P60 A60P60G 56.00 x 56.00 1422 x 1422
A62H6012SS6LP3PT 62.06 x 60.06 x 12.06 1576 x 1526 x 306 316L A60P60 A60P60G 56.00 x 56.00 1422 x 1422
A74H6012SSLP3PT 74.06 x 60.06 x 12.06 1881 x 1526 x 306 304 A72P60 A72P60G 68.00 x 56.00 1727 x 1422
A74H6012SS6LP3PT 74.06 x 60.06 x 12.06 1881 x 1526 x 306 316L A72P60 A72P60G 68.00 x 56.00 1727 x 1422
A74H7212SSLP3PT 74.06 x 72.06 x 12.06 1881 x 1830 x 306 304 A72P72 A72P72G 68.00 x 68.00 1727 x 1727
A74H7212SS6LP3PT 74.06 x 72.06 x 12.06 1881 x 1830 x 306 316L A72P72 A72P72G 68.00 x 68.00 1727 x 1727
A62H4818SSLP3PT 62.06 x 48.06 x 18.06 1576 x 1221 x 459 304 A60P48 A60P48G 56.00 x 44.00 1422 x 1118
A62H4818SS6LP3PT 62.06 x 48.06 x 18.06 1576 x 1221 x 459 316L A60P48 A60P48G 56.00 x 44.00 1422 x 1118
A62H6018SSLP3PT 62.06 x 60.06 x 18.06 1576 x 1526 x 459 304 A60P60 A60P60G 56.00 x 44.00 1422 x 1118
A62H6018SS6LP3PT 62.06 x 60.06 x 18.06 1576 x 1526 x 459 316L A60P60 A60P60G 56.00 x 44.00 1422 x 1118
A74H6018SSLP3PT 74.06 x 60.06 x 18.06 1881 x 1526 x 459 304 A72P60 A72P60G 68.00 x 56.00 1727 x 1422
A74H6018SS6LP3PT 74.06 x 60.06 x 18.06 1881 x 1526 x 459 316L A72P60 A72P60G 68.00 x 56.00 1727 x 1422
A74H7218SSLP3PT 74.06 x 72.06 x 18.06 1881 x 1830 x 459 304 A72P72 A72P72G 68.00 x 68.00 1727 x 1727
A74H7218SS6LP3PT 74.06 x 72.06 x 18.06 1881 x 1830 x 459 316L A72P72 A72P72G 68.00 x 68.00 1727 x 1727
A74H7224SSLP3PT 74.06 x 72.06 x 24.06 1881 x 1830 x 611 304 A72P72 A72P72G 68.00 x 68.00 1727 x 1727
A74H7224SS6LP3PT 74.06 x 72.06 x 24.06 1881 x 1830 x 611 316L A72P72 A72P72G 68.00 x 68.00 1727 x 1727
Purchase panels separately.
Industrial+Automation+Supply!–!www.iasinc.com!,!Tel:!800,736,2345!

EQUIPMENT PROTECTIONSUBJECT TO CHANGE WITHOUT NOTICESTAINLESS STEEL190
2
FLOORMOUNT AND FREESTAND ENCLOSURES Floor-mount and Free-stand enClosures
TWODOOR WITH FLOORSTANDS, TYPE 4X
INDUSTRY STANDARDS
UL 508A Listed; Type 3R, 4, 4X, 12; File No. E61997
cUL Listed per CSA C22.2 No 94; Type 3R, 4, 4X, 12; File No.
E61997
NEMA Type 3, 3R, 4, 4X, 12, 13
CSA File No. 42186: Type 4, 4X, 12
IEC 60529, IP66
Meets NEMA Type 3RX requirements
APPLICATION
This two-door enclosure provides industry-leading protection for
systems incorporating large components or complex mounting
configurations in highly corrosive environments. It is typically used
in food processing plants, pharmaceutical manufacturing facilities,
petrochemical plants, pulp and paper processing and water
treatment facilities.
SPECIFICATIONS
• 12 gauge Type 304 or 316L stainless steel
• Seams continuously welded and ground smooth; no holes or
knockouts
• Backs are 10 or 12 gauge stainless steel with x-form stiffeners
• Removable centerpost for easy panel installation
• Panel supports
• Heavy-duty lifting eyes are Type 316 stainless steel
• Stainless steel screws and clamps on three sides of each door
assure water-tight seal
• Rolled lip around three sides of door and along top of enclosure
opening excludes liquids and contaminants
• Heavy-gauge stainless steel continuous hinge
• Data pocket is high-impact thermoplastic
• 12-in. (305-mm) floor stands are welded to enclosure
• Hasp and staple for padlocking
• Seamless foam-in-place gasket provides oil-tight and dust-tight
seal against contaminants
• Collar studs provided for mounting optional panels
• External hardware manufactured of Type 316 stainless steel
• Bonding provision on doors; gounding studs on body
• Accessory mounting channel provided in enclosure top
• Type 316L stainless steel lifting eyes
FINISH
Enclosures are unpainted. Front, sides, top and back have smooth
#4 brushed finish. Optional mild steel panels are painted white.
Optional conductive panels are available.
ACCESSORIES
See also Accessories.
Electric Heater
PANELITE™ Enclosure Lights Overview
Panel Support Kit
Steel and Stainless Steel Window Kits
MODIFICATION AND CUSTOMIZATION
Hoffman excels at modifying and customizing products to your
specifications. Contact your local Hoffman sales office or distributor
for complete information.
BULLETIN: A4SL
Standard Product
Catalog Number AxBxC in./mm
Stainless
Steel Type Panel
Conductive
Panel
Panel Size D x E
in./mm
Number
of Clamps
A62H4812SSLP 62.06 x 48.06 x 12.06
1576 x 1221 x 306
304 A60P48 A60P48G 56.00 x 44.00
1422 x 1118
16
A62H4812SS6LP 62.06 x 48.06 x 12.06
1576 x 1221 x 306
316L A60P48 A60P48G 56.00 x 44.00
1422 x 1118
16
A62H6012SSLP 62.06 x 60.06 x 12.06
1576 x 1526 x 306
304 A60P60 A60P60G 56.00 x 56.00
1422 x 1422
16
A62H6012SS6LP 62.06 x 60.06 x 12.06
1576 x 1526 x 306
316L A60P60 A60P60G 56.00 x 56.00
1422 x 1422
16
A74H6012SSLP 74.06 x 60.06 x 12.06
1881 x 1526 x 306
304 A72P60 A72P60G 68.00 x 56.00
1727 x 1422
18
A74H6012SS6LP 74.06 x 60.06 x 12.06
1881 x 1526 x 306
316L A72P60 A72P60G 68.00 x 56.00
1727 x 1422
18
A74H7212SSLP 74.06 x 72.06 x 12.06
1881 x 1830 x 306
304 A72P72 A72P72G 68.00 x 68.00
1727 x 1727
18
A74H7212SS6LP 74.06 x 72.06 x 12.06
1881 x 1830 x 306
316L A72P72 A72P72G 68.00 x 68.00
1727 x 1727
18
A74H7224SSLP 74.06 x 72.06 x 24.06
1881 x 1830 x 611
304 A72P72 A72P72G 68.00 x 68.00
1727 x 1727
18
A74H7224SS6LP 74.06 x 72.06 x 24.06
1881 x 1830 x 611
316L A72P72 A72P72G 68.00 x 68.00
1727 x 1727
18
Purchase panels separately.
A74H7212SSLP, A74H7212SS6LP, A74H7224SSLP and A74H7224SS6LP have 10 gauge back.
Industrial+Automation+Supply!–!www.iasinc.com!,!Tel:!800,736,2345!

EQUIPMENT PROTECTIONSUBJECT TO CHANGE WITHOUT NOTICESTAINLESS STEEL192
2
FLOORMOUNT AND FREESTAND ENCLOSURES Floor-mount and Free-stand enClosures
GENERAL PURPOSE TWODOOR WITH QUARTERTURN LATCHES AND FLOOR STANDS, TYPE 4X
INDUSTRY STANDARDS
UL 508A Listed; Type 3R, 4, 4X, 12; File No. E61997
cUL Listed per CSA C22.2 No 94; Type 3R, 4, 4X, 12; File No.
E61997
NEMA/EEMAC: Type 3R, 4, 4X, 12
Number E61997
IEC 60529, IP66
Meets NEMA Type 3RX requirements
APPLICATION
This two-door stainless steel enclosure with quarter-turn latches is
designed to house electronic controls and components. It provides
protection from noncorrosive or mildly corrosive elements in both
indoor and outdoor environments. Typical applications are in the
food and beverage, packaging, water, petroleum and chemical
processing industries.
SPECIFICATIONS
• 14 gauge doors and 12 gauge body from Type 304 stainless steel
• Seams continuously welded and ground smooth
• Flange trough collar on all four sides of door openings
• Seamless foam-in-place one-piece gasket provides water-, oil-
and dust-tight seal against contaminants
• Black die-cast quarter-turn latches with slotted insert provided
on three sides of each door
• Concealed hinges provide 180-degree door opening and allow
easy door removal and cleaning of hinge area
• Bolt-on 12-in.-high stainless steel floor stands
• Heavy-duty Type 316L stainless steel lifting eyes
• Collar studs on inside of enclosure back for mounting optional
panels
• Removable centerpost for easy panel installation
• Bonding provisions on doors; grounding studs on body
• Data pocket is high-impact plastic attached with pressure-
sensitive adhesive
• No interior stiffeners to obstruct component mounting
• Accessory mounting channel provided in enclosure top
FINISH
Stainless steel enclosures are unpainted. External surfaces of
front, sides, top and bottom have a #4 finish. Interior welds are
not finished. Optional mild steel panels are painted white. Optional
conductive panels are available.
ACCESSORIES
See also Accessories.
Electric Heater
PANELITE™ Enclosure Lights Overview
Panel Support Kit
Panels for Type 3R, 4, 4X, 12 and 13 Enclosures
Steel and Stainless Steel Window Kits
MODIFICATION AND CUSTOMIZATION
Hoffman excels at modifying and customizing products to your
specifications. Contact your local Hoffman sales office or distributor
for complete information.
BULLETIN: A4S2
Standard Product
Catalog Number AxBxC in./mm Panel
Conductive
Panel
Panel Size D x E
in./mm
Number
of Latches
A60H4812SSLPQT 60.06 x 48.06 x 12.06
1526 x 1221 x 306
A60P48 A60P48G 56.00 x 44.00
1422 x 1118
10
A60H6012SSLPQT 60.06 x 60.06 x 12.06
1526 x 1526 x 306
A60P60 A60P60G 56.00 x 56.00
1422 x 1422
10
A72H6012SSLPQT 72.06 x 60.06 x 12.06
1830 x 1526 x 306
A72P60 A72P60G 68.00 x 56.00
1727 x 1422
10
A72H7212SSLPQT 72.06 x 72.06 x 12.06
1830 x 1830 x 306
A72P72 A72P72G 68.00 x 68.00
1727 x 1727
10
A60H4818SSLPQT 60.06 x 48.06 x 18.06
1526 x 1221 x 459
A60P48 A60P48G 56.00 x 44.00
1422 x 1118
10
A60H6018SSLPQT 60.06 x 60.06 x 18.06
1526 x 1526 x 459
A60P60 A60P60G 56.00 x 56.00
1422 x 1422
10
A72H6018SSLPQT 72.06 x 60.06 x 18.06
1830 x 1526 x 459
A72P60 A72P60G 68.00 x 56.00
1727 x 1422
10
A72H7218SSLPQT 72.06 x 72.06 x 18.06
1830 x 1830 x 459
A72P72 A72P72G 68.00 x 68.00
1727 x 1727
10
A72H7224SSLPQT 72.06 x 72.06 x 24.06
1830 x 1830 x 611
A72P72 A72P72G 68.00 x 68.00
1727 x 1727
10
Purchase panels separately.
Industrial+Automation+Supply!–!www.iasinc.com!,!Tel:!800,736,2345!

EQUIPMENT PROTECTIONSUBJECT TO CHANGE WITHOUT NOTICESTAINLESS STEEL194
2
FLOORMOUNT AND FREESTAND ENCLOSURES Floor-mount and Free-stand enClosures
GENERAL PURPOSE SINGLEDOOR FREESTAND WITH QUARTERTURN LATCHES, TYPE 4X
INDUSTRY STANDARDS
UL508A Listed; Type 3R, 4, 4X, 12; File No. E61997
cUL Listed per CSA C22.2 No. 94; Type 3R, 4, 4X, 12; File No.
E61997
NEMA/EEMAC: Type 3R, 4, 4X, 12
IEC 60529, IP66
Meets NEMA Type 3RX
APPLICATION
This single-door stainless steel enclosure with quarter-turn
latches is designed to house electronic controls and components.
It provides protection from non-corrosive or mildly corrosive
elements in both indoor and outdoor environments. Typical
applications are in the pharmaceutical, food and beverage,
packaging, water, petroleum and chemical processing industries.
SPECIFICATIONS
• Type 304 Stainless Steel 14 gauge doors and body, and 14 or 12
gauge back
• Seams continuously welded and ground smooth
• Flange trough collar on all four sides of door openings
• Seamless foam-in-place one-piece gasket provides water-, oil-
and dust-tight seal against contaminants
• Black die-cast quarter-turn latches with slotted insert provided
on three sides of door
• Concealed stainless steel hinges provide 180-degree door
opening and allow easy door removal and cleaning of hinge area
• Heavy-duty Type 316L stainless steel lifting eyes
• Internal accessory mounting channels welded horizontally to
sides at top, bottom and center
• High-impact plastic Data Pocket kit, attached with pressure-
sensitive adhesive, is included with enclosure
• Bonding provision on door; grounding stud on body
• Accessory mounting channel provided in enclosure top
FINISH
Stainless steel enclosures are unpainted. External surfaces of
front, sides, top and bottom have a #4 finish. Interior welds are not
finished.
Optional mild steel back panels are painted white. Optional
conductive back panels are available.
ACCESSORIES
See also Accessories
Swing Out Panels
Back Panels
Side Mount Panels
Rack Mounting Angles
Stainless Steel Window Kits
MODIFICATION AND CUSTOMIZATION
Hoffman excels at modifying and customizing products to your
specifications. Contact your local Hoffman sales office or distributor
for complete information.
BULLETIN: A4S2
Standard Product
Catalog Number AxBxC in./mm Panel
Conductive
Panel
Panel Size D x E
in./mm
A72HS2418SSLPQT 72.06 x 24.06 x 18.06
1830 x 611 x 459
A72P24F1 A72P24F1G 60.00 x 20.00
1524 x 508
A72HS3024SSLPQT 72.06 x 30.06 x 24.06
1830 x 764 x 611
A72P30F1 A72P30F1G 60.00 x 26.00
1525 x 661
A72HS3624SSLPQT 72.06 x 36.06 x 24.06
1830 x 916 x 611
A72P36F1 A72P36F1G 60.00 x 32.00
1524 x 813
Industrial+Automation+Supply!–!www.iasinc.com!,!Tel:!800,736,2345!

PH 763.422.2211 • FAX 763.422.2600 • PENTAIRPROTECT.COMEQUIPMENT PROTECTION STAINLESS STEEL 195
2
FLOORMOUNT AND FREESTAND ENCLOSURES Floor-mount and Free-stand enClosures
%
&
%
$
Industrial+Automation+Supply!–!www.iasinc.com!,!Tel:!800,736,2345!

EQUIPMENT PROTECTIONSUBJECT TO CHANGE WITHOUT NOTICESTAINLESS STEEL196
2
FLOORMOUNT AND FREESTAND ENCLOSURES Floor-mount and Free-stand enClosures
TWODOOR WITH 3POINT LATCHES AND FLOORSTANDS, TYPE 12
INDUSTRY STANDARDS
UL 508A Listed; Type 12; File No. E61997
cUL Listed per CSA C22.2 No 94; Type 12; File No. E61997
NEMA/EEMAC Type 12
CSA File No. 42186: Type 12
IEC 60529, IP55
APPLICATION
Designed to house systems incorporating large components or
complex mounting configurations. Three-point latching and sealing
provide industry-leading protection from dust, dirt, oil and water.
SPECIFICATIONS
• Manufactured from 12 or 14 gauge Type 304 stainless steel
• Seams continuously welded and ground smooth; no holes or
knockouts
• Strong, rigid construction with body stiffeners
• Gasketed overlapping doors eliminate need for centerpost
• Plated steel 3-point latching mechanism and key-locking handle
• Latch rods have rollers for easier door-closing
• Heavy-gauge continuous hinges support each door
• Data pocket, provided on door with 3-point latches, is high-impact
thermoplastic
• 12-in. (305-mm) floor stands are welded to enclosure
• Heavy-duty lifting eyes are Type 316 stainless steel
• Panel supports
• Collar studs for mounting optional panel
• Bonding provision on doors; grounding studs on body
• Accessory mounting channel in top of enclosure
FINISH
Enclosures are unpainted. Front, sides, top and back have smooth
#4 brushed finished. Optional mild steel panels are painted white.
Optional conductive panels are available.
ACCESSORIES
See also Accessories.
Drip Shield Kit for Type 12 Enclosures
Enclosure Stabilizers
Center Panel Supports
Panels for Type 3R, 4, 4X, 12 and 13 Enclosures
MODIFICATION AND CUSTOMIZATION
Hoffman excels at modifying and customizing products to your
specifications. Contact your local Hoffman sales office or distributor
for complete information.
BULLETIN: A12S
Standard Product
Catalog Number AxBxC in. AxBxC mm Gauge Panel
Galvanized
Panel
Panel
Gauge
Panel Size
D x E (in.)
Panel Size
D x E (mm) Stiffener (Body)
A544208SSLP 54.00 x 42.00 x 8.00 1372 x 1067 x 203 14 A54P42 A54P42G 12 50.00 x 38.00 1270 x 965 3
A604808SSLP 60.06 x 48.06 x 8.06 1526 x 1221 x 205 12 A60P48 A60P48G 10 56.00 x 44.00 1422 x 1118 1 (X-form)
A604810SSLP 60.06 x 48.06 x 10.06 1526 x 1221 x 256 12 A60P48 A60P48G 10 56.00 x 44.00 1422 x 1118 1 (X-form)
A606010SSLP 60.06 x 60.06 x 10.06 1526 x 1526 x 256 12 A60P60 A60P60G 10 56.00 x 56.00 1422 x 1422 1 (X-form)
A726010USSLP 72.06 x 60.06 x 10.06 1830 x 1526 x 256 12 A72P60 A72P60G 10 68.00 x 56.00 1727 x 1422 1 (X-form)
A727210USSLP 72.06 x 72.06 x 10.06 1830 x 1830 x 256 12 A72P72 A72P72G 10 68.00 x 68.00 1727 x 1727 1 (X-form)
A604812SSLP 60.06 x 48.06 x 12.06 1526 x 1221 x 306 12 A60P48 A60P48G 10 56.00 x 44.00 1422 x 1118 1 (X-form)
A606012SSLP 60.06 x 60.06 x 12.06 1526 x 1526 x 306 12 A60P60 A60P60G 10 56.00 x 56.00 1422 x 1422 1 (X-form)
A726012USSLP 72.06 x 60.06 x 12.06 1830 x 1526 x 306 12 A72P60 A72P60G 10 68.00 x 56.00 1727 x 1422 1 (X-form)
A727212USSLP 72.06 x 72.06 x 12.06 1830 x 1830 x 306 12 A72P72 A72P72G 10 68.00 x 68.00 1727 x 1727 1 (X-form)
A604816SSLP 60.06 x 48.06 x 16.06 1526 x 1221 x 408 12 A60P48 A60P48G 10 56.00 x 44.00 1422 x 1118 1 (X-form)
A606016SSLP 60.06 x 60.06 x 16.06 1526 x 1526 x 408 12 A60P60 A60P60G 10 56.00 x 56.00 1422 x 1422 1 (X-form)
A726016USSLP 72.06 x 60.06 x 16.06 1830 x 1526 x 408 12 A72P60 A72P60G 10 68.00 x 56.00 1727 x 1422 1 (X-form)
A727216USSLP 72.06 x 72.06 x 16.06 1830 x 1830 x 408 12 A72P72 A72P72G 10 68.00 x 68.00 1727 x 1727 1 (X-form)
A604820SSLP 60.06 x 48.06 x 20.06 1526 x 1221 x 510 12 A60P48 A60P48G 10 56.00 x 44.00 1422 x 1118 1 (X-form)
A726020USSLP 72.06 x 60.06 x 20.06 1830 x 1526 x 510 12 A72P60 A72P60G 10 68.00 x 56.00 1727 x 1422 1 (X-form)
A727220USSLP 72.06 x 72.06 x 20.06 1830 x 1830 x 510 12 A72P72 A72P72G 10 68.00 x 68.00 1727 x 1727 1 (X-form)
A604824SSLP 60.06 x 48.06 x 24.06 1526 x 1221 x 611 12 A60P48 A60P48G 10 56.00 x 44.00 1422 x 1118 1 (X-form)
A606024SSLP 60.06 x 60.06 x 24.06 1526 x 1526 x 611 12 A60P60 A60P60G 10 56.00 x 56.00 1422 x 1422 1 (X-form)
A726024USSLP 72.06 x 60.06 x 24.06 1830 x 1526 x 611 12 A72P60 A72P60G 10 68.00 x 56.00 1727 x 1422 1 (X-form)
A727224USSLP 72.06 x 72.06 x 24.06 1830 x 1830 x 611 12 A72P72 A72P72G 10 68.00 x 68.00 1727 x 1727 1 (X-form)
Purchase panels separately.
Industrial+Automation+Supply!–!www.iasinc.com!,!Tel:!800,736,2345!

EQUIPMENT PROTECTIONSUBJECT TO CHANGE WITHOUT NOTICESTAINLESS STEEL198
2
FLOORMOUNT AND FREESTAND ENCLOSURES Floor-mount and Free-stand enClosures
FREESTAND, TYPE 4X
INDUSTRY STANDARDS
UL 508A Listed; Type 3R, 4, 4X, 12; File No. E61997
cUL Listed per CSA C22.2 No 94; Type 3R, 4, 4X, 12; File No.
E61997
NEMA Type 3, 3R, 4, 4X, 12, 13
CSA File No. 42186: Type 4, 4X, 12
E.I.A. RS-310-D
IEC 60529, IP66
Meets NEMA Type 3RX requirements
APPLICATION
This single-door enclosure provides industry-leading protection
for systems incorporating large components or complex mounting
configurations in highly corrosive environments. The addition of
19-in. rack-mounting accessories makes these enclosures ideal for
providing rugged protection for sensitive rack-mounted components
in harsh industrial environments. The enclosure is typically used in
food-processing plants, pharmaceutical manufacturing facilities,
petrochemical plants and waste-water treatment facilities.
SPECIFICATIONS
• 12 gauge Type 304 or 316L stainless steel
• Seams continuously welded and ground smooth; no holes or
knockouts
• Mounting channels welded horizontally to interior body sides at
top, bottom and center
• Panels and rack mounting angles can be mounted anywhere
along channels
• Rolled lip around three sides of door and along top of enclosure
opening excludes liquids and contaminants
• Stainless steel door clamps on three sides of door assure water-
tight seal
• Heavy-gauge stainless steel continuous hinge
• Stainless steel hinge pin
• Stainless steel hasp and staple provided for padlocking
• Data pocket is high-impact thermoplastic
• Heavy-duty lifting eyes are Type 316L stainless steel
• Oil-resistant door gasket
• Bonding provision on door; grounding stud on body
• Accessory mounting channel provided in enclosure top
FINISH
Enclosures are unpainted. Front, sides, top and back have smooth
#4 brushed finish. Optional steel panels, swing-out panels, side-
mounted panels, rack-mounting frames, heavy-duty panel supports
and center panel supports are painted white. Optional full, half and
side-mounted conductive panels are available.
ACCESSORIES
See also Accessories.
Caster Kit
Clamping Nut Package
Drip Shield Kit for Type 12 Enclosures
PANELITE™ Enclosure Lights Overview
MODIFICATION AND CUSTOMIZATION
Hoffman excels at modifying and customizing products to your
specifications. Contact your local Hoffman sales office or distributor
for complete information.
BULLETIN: A4SL
Standard Products
Catalog Number AxBxC in./mm
Stainless
Steel Type
X
in./mm
G
in./mm
A72H2518SSFS 72.06 x 25.06 x 18.06
1830 x 637 x 459
304 6.38
162
29.12
740
A72H2518SS6FS 72.06 x 25.06 x 18.06
1830 x 637 x 459
316L 6.38
162
29.12
740
A72H3124SSFS 72.06 x 31.06 x 24.06
1830 x 789 x 611
304 8.38
213
29.12
740
A72H3124SS6FS 72.06 x 31.06 x 24.06
1830 x 789 x 611
316L 8.38
213
29.12
740
A72H3724SSFS 72.06 x 37.06 x 24.06
1830 x 941 x 611
304 10.38
264
29.12
740
A72H3724SS6FS 72.06 x 37.06 x 24.06
1830 x 941 x 611
316L 10.38
264
29.12
740
Purchase panels and accessories separately.
Industrial+Automation+Supply!–!www.iasinc.com!,!Tel:!800,736,2345!

EQUIPMENT PROTECTIONSUBJECT TO CHANGE WITHOUT NOTICESTAINLESS STEEL200
2
FLOORMOUNT AND FREESTAND ENCLOSURES Floor-mount and Free-stand enClosures
FREESTAND SINGLE AND DUAL ACCESS WITH 3POINT LATCHES, TYPE 4X
INDUSTRY STANDARDS
UL 508A Listed; Type 3R, 4, 4X, 12; File No. E61997
cUL Listed per CSA C22.2 No 94; Type 3R, 4, 4X, 12; File No.
E61997
NEMA/EEMAC Type 3, 3R, 4, 4X, 12, 13
E.I.A. RS-310-D
IEC 60529, IP66
Meets NEMA Type 3RX requirements
APPLICATION
Designed to house systems incorporating large components or
complex mounting configurations. Three-point latching and sealing
provide industry-leading protection from dust, dirt, oil and water.
These enclosures are used in machine tool applications for housing
motor starters, drives, contactors and PLCs, as well as a wide
variety of other electrical and electronic equipment. The addition
of 19-in. rack-mounting accessories makes these enclosures
ideal for providing rugged protection for sensitive rack-mounted
components in harsh industrial environments. These enclosures
are used extensively in automotive, pulp and paper, wood products,
textile and similar industries.
Four styles are available to provide maximum flexibility:
1. One-Door Single-Access Enclosures (single door on front)
2. One-Door Dual-Access Enclosures (single door on front and
rear)
3. Two-Door Single-Access Enclosures (doors close on a
removeable centerpost)
4. Two-Door Dual-Access Enclosures (doors close on a
removeable centerpost on front and rear)
SPECIFICATIONS
• 12 gauge Type 304 stainless steel
• Seams continuously welded and ground smooth; no holes or
knockouts
• Two-door enclosures provided with a removeable centerpost for
easy panel installation
• Heavy-duty lifting eyes are Type 316L stainless steel
• Heavy-duty three-point latching mechanism operated by Type
316L stainless steel POWERGLIDE™ padlocking handle
• Seemless foam-in-place gasket assures a water-tight and dust-
tight seal
• Body flange trough collar excludes liquids and contaminants
• Latch rods have rollers for easier door closing
• Heavy-gauge continuous hinges support each door
• High-impact thermoplastic data pocket provided with each
enclosure
• Mounting channels welded horizontally to interior body sides at
top, bottom and center
• Optional panels and rack mounting angles can be mounted
anywhere along channels
• Bonding provision on door; grounding stud on body
• Accessory mounting channel provided in enclosure top
FINISH
Enclosures are unpainted. Cover, sides, top and bottom have smooth
#4 brushed finish. Optional steel panels, swing-out panels, side-
mounted panels, rack-mounting frames, heavy-duty panel supports
and center panel supports are white. Optional full, half and side-
mounted conductive panels are available.
ACCESSORIES
See also Accessories.
Caster Kit
Clamping Nut Package
Floor Stand Kit, Stainless Steel
Center Panel Supports
Panels for Free-Stand Type 4, 4X and 12 Single- and Dual-Access
One-Door Enclosures with Mounting Channel
Panels for Free-Stand Type 4, 4X and 12 Single- and Dual-Access
Two-Door Enclosures with Mounting Channel
MODIFICATION AND CUSTOMIZATION
Hoffman excels at modifying and customizing products to your
specifications. Contact your local Hoffman sales office or distributor
for complete information.
BULLETIN: A30S4
Industrial+Automation+Supply!–!www.iasinc.com!,!Tel:!800,736,2345!

PH 763.422.2211 • FAX 763.422.2600 • PENTAIRPROTECT.COMEQUIPMENT PROTECTION STAINLESS STEEL 201
2
FLOORMOUNT AND FREESTAND ENCLOSURES Floor-mount and Free-stand enClosures
Standard Product One-Door Single-Access
Catalog Number AxBxC in./mm
F
in./mm
G
in./mm
A602418SSFSN4 60.06 x 24.06 x 18.06
1526 x 611 x 459
32.03
814
23.12
587
A722418SSFSN4 72.06 x 24.06 x 18.06
1830 x 611 x 459
38.03
966
29.12
740
A723018SSFSN4 72.06 x 30.06 x 18.06
1830 x 764 x 459
38.03
966
29.12
740
A723618SSFSN4 72.06 x 36.06 x 18.06
1830 x 916 x 459
38.03
966
29.12
740
A902420SSFSN4 90.06 x 24.06 x 20.06
2288 x 611 x 510
47.03
1195
38.12
968
A903620SSFSN4 90.06 x 36.06 x 20.06
2288 x 916 x 510
47.03
1195
38.12
968
A603624SSFSN4 60.06 x 36.06 x 24.06
1526 x 916 x 611
32.03
814
23.12
587
A722424SSFSN4 72.06 x 24.06 x 24.06
1830 x 611 x 611
38.03
966
29.12
740
A723024SSFSN4 72.06 x 30.06 x 24.06
1830 x 764 x 611
38.03
966
29.12
740
A723624SSFSN4 72.06 x 36.06 x 24.06
1830 x 916 x 611
38.03
966
29.12
740
A903624SSFSN4 90.06 x 36.06 x 24.06
2288 x 916 x 611
47.03
1195
38.12
968
A723630SSFSN4 72.06 x 36.06 x 30.06
1830 x 916 x 764
38.03
966
29.12
740
A723636SSFSN4 72.06 x 36.06 x 36.06
1830 x 916 x 916
38.03
966
29.12
740
A903636SSFSN4 90.06 x 36.06 x 36.06
2288 x 916 x 916
47.03
1195
38.12
968
Purchase panels and accessories separately.
Industrial+Automation+Supply!–!www.iasinc.com!,!Tel:!800,736,2345!

EQUIPMENT PROTECTIONSUBJECT TO CHANGE WITHOUT NOTICESTAINLESS STEEL202
2
FLOORMOUNT AND FREESTAND ENCLOSURES Floor-mount and Free-stand enClosures
Standard Product One-Door Dual-Access
Catalog Number AxBxC in./mm
F
in./mm
G
in./mm
A722424SSFSDAN4 72.06 x 24.06 x 24.06
1830 x 611 x 611
38.03
966
29.12
740
A723024SSFSDAN4 72.06 x 30.06 x 24.06
1830 x 764 x 611
38.03
966
29.12
740
A723624SSFSDAN4 72.06 x 36.06 x 24.06
1830 x 916 x 611
38.03
966
29.12
740
A903624SSFSDAN4 90.06 x 36.06 x 24.06
2288 x 916 x 611
47.03
1195
38.12
968
A722430SSFSDAN4 72.06 x 24.06 x 30.06
1830 x 611 x 764
38.03
966
29.12
740
A722436SSFSDAN4 72.06 x 24.06 x 36.06
1830 x 611 x 916
38.03
966
29.12
740
A723636SSFSDAN4 72.06 x 36.06 x 36.06
1830 x 916 x 916
38.03
966
29.12
740
A903636SSFSDAN4 90.06 x 36.06 x 36.06
2288 x 916 x 916
47.03
1195
38.12
968
Purchase panels and accessories separately.
Industrial+Automation+Supply!–!www.iasinc.com!,!Tel:!800,736,2345!

PH 763.422.2211 • FAX 763.422.2600 • PENTAIRPROTECT.COMEQUIPMENT PROTECTION STAINLESS STEEL 203
2
FLOORMOUNT AND FREESTAND ENCLOSURES Floor-mount and Free-stand enClosures
Standard Product Two-Door Single-Access
Catalog Number AxBxC in./mm
F
in./mm
G
in./mm
H
in./mm
J
in./mm
A604818SSFSDN4 60.06 x 48.06 x 18.06
1526 x 1221 x 459
32.03
814
23.12
587
19.88
505
20.03
509
A724818SSFSDN4 72.06 x 48.06 x 18.06
1830 x 1221 x 459
38.03
966
29.12
740
23.88
607
24.03
610
A726018SSFSDN4 72.06 x 60.06 x 18.06
1830 x 1526 x 459
38.03
966
29.12
740
23.88
607
24.03
610
A727218SSFSDN4 72.06 x 72.06 x 18.06
1830 x 1830 x 459
38.03
966
29.12
740
23.88
607
24.03
610
A904820SSFSDN4 90.06 x 48.06 x 20.06
2288 x 1221 x 510
47.03
1195
38.12
968
29.88
759
30.03
763
A907220SSFSDN4 90.06 x 72.06 x 20.06
2288 x 1830 x 510
47.03
1195
38.12
968
29.88
759
30.03
763
A724824SSFSDN4 72.06 x 48.06 x 24.06
1830 x 1221 x 611
38.03
966
29.12
740
23.88
607
24.03
610
A726024SSFSDN4 72.06 x 60.06 x 24.06
1830 x 1526 x 611
38.03
966
29.12
740
23.88
607
24.03
610
A727224SSFSDN4 72.06 x 72.06 x 24.06
1830 x 1830 x 611
38.03
966
29.12
740
23.88
607
24.03
610
A907224SSFSDN4 90.06 x 72.06 x 24.06
2288 x 1830 x 611
47.03
1195
38.12
968
29.88
759
30.03
763
A726036SSFSDN4 72.06 x 60.06 x 36.06
1830 x 1526 x 916
38.03
966
29.12
740
23.88
607
24.03
610
A907236SSFSDN4 90.06 x 72.06 x 36.06
2288 x 1830 x 916
47.03
1195
38.12
968
29.88
759
30.03
763
Purchase panels and accessories separately.
Industrial+Automation+Supply!–!www.iasinc.com!,!Tel:!800,736,2345!

EQUIPMENT PROTECTIONSUBJECT TO CHANGE WITHOUT NOTICESTAINLESS STEEL204
2
FLOORMOUNT AND FREESTAND ENCLOSURES Floor-mount and Free-stand enClosures
Standard Product Two-Door Dual-Access
Catalog Number AxBxC in./mm
F
in./mm
G
in./mm
A724824SSFSDADN4 72.06 x 48.06 x 24.06
1830 x 1221 x 611
38.03
966
29.12
740
A726024SSFSDADN4 72.06 x 60.06 x 24.06
1830 x 1526 x 611
38.03
966
29.12
740
A727224SSFSDADN4 72.06 x 72.06 x 24.06
1830 x 1830 x 611
38.03
966
29.12
740
A907224SSFSDADN4 90.06 x 72.06 x 24.06
2288 x 1830 x 611
47.03
1195
38.12
968
A726036SSFSDADN4 72.06 x 60.06 x 36.06
1830 x 1526 x 916
38.03
966
29.12
740
Purchase panels and accessories separately.
Industrial+Automation+Supply!–!www.iasinc.com!,!Tel:!800,736,2345!

EQUIPMENT PROTECTIONSUBJECT TO CHANGE WITHOUT NOTICESTAINLESS STEEL206
2
FLOORMOUNT AND FREESTAND ENCLOSURES Floor-mount and Free-stand enClosures
FREESTAND ACCESSORIES SELECTION GUIDE
FLOORMOUNT AND FREESTAND ENCLOSURES FLOOR-MOUNT AND FREE-STAND ENCLOSURES
Spec-00382 H
EQUIPMENT PROTECTION SOLUTIONSSUBJECT TO CHANGE WITHOUT NOTICESTAINLESS STEEL1
763.422.2211
763.422.2600
Spec-00382
H
STAINLE SS STEEL
FLOOR-MOUNT A ND FREE-STAND ENC LOSURES
FLOOR-MOUNT A ND FREE-STAND ENC LOSURES
TYPE 12 FREESTAND ENCLOSURES ACCESSORY SELECTION
(SEE ACCESSORIES FOR DETAILS)
Single-Door
Single-Access
Enclosures
Single-Door
Dual-Access
Enclosures
A602418SSFS
A722418SSFS
A723018SSFS
A723618SSFS
A902420SSFS
A903620SSFS
A603624SSFS
A722424SSFS
A723024SSFS
A723624SSFS
A903624SSFS
A723630SSFS
A723636SSFS
A903636SSFS
A722424SSFSDA
A723024SSFSDA
A723624SSFSDA
A903624SSFSDA
A722430SSFSDA
A722426SSFSDA
A723636SSFSDA
A903636SSFSDA
Catalog Number
Steel Conductive Description Panel Size
A60P24F1 A60P24F1G Full Panel 48.00 x 20.00 (1219 x 508) • •a•a•a•a•a•a
A60P24F2 A60P24F2G Half Panel 24.88 x 20.00 (632 x 508) • •a•a•a•a•a•a
A72P24F1 A72P24F1G Full Panel 60.00 x 20.00 (1524 x 508) • •a• • • •
A72P24F2 A72P24F2G Half Panel 30.88 x 20.00 (784 x 508) •a• •a• • • •
A90P24F1 A90P24F1G Full Panel 78.00 x 20.00 (1981 x 508) •
A90P24F2 A90P24F2G Half Panel 39.00 x 20.00 (1013 x 508) •a•a• •a•a•a•a
A72P30F1 A72P30F1G Full Panel 60.00 x 26.00 (1524 x 660) • • •
A72P30F2 A72P30F2G Half Panel 30.88 x 26.00 (784 x 660) • • •
A60P36F1 A60P36F1G Full Panel 48.00 x 32.00 (1219 x 813) •a•a• •a•a•a•a•a•a•a•a
A60P36F2 A60P36F2G Half Panel 24.88 x 32.00 (632 x 813) •a•a• •a•a•a•a•a•a•a•a
A72P36F1 A72P36F1G Full Panel 60.00 x 32.00 (1524 x 813) • • •a• • •a• •a•
A72P36F2 A72P36F2G Half Panel 30.88 x 32.00 (784 x 813) • •a•a•a• •a• • •a• •a•
A90P36F1 A90P36F1G Full Panel 78.00 x 32.00 (1981 x 813) • • • • •
A90P36F2 A90P36F2G Half Panel 39.88 x 32.00 (1013 x 813) •a• •a•a• •a•a• •a• •a•
Catalog Number Description Panel Size
A72SP24F3 Full Panel 60.00 x 18.81 (1524 x 478) • • • • •
A72SP24F4 Half Panelc30.88 x 18.81 (784 x 478) • • • • •
A72SP30F3 Full Panel 60.00 x 24.81 (1524 x 630) • • •
A72SP30F4 Half Panelc30.88 x 24.81 (784 x 630) • • •
A72SP36F3 Full Panel 60.00 x 30.81 (1524 x 783) • • • • • •
A72SP36F4 Half Panelc30.88 x 30.81 (784 x 783) • • • • • • •
A90SP36F3 Full Panel 78.00 x 30.81 (1981 x 783) • • • • •
A90SP36F4 Half Panelc39.88 x 30.81 (1013 x 783) • • •
Catalog Number
Steel Conductive Description Panel Size
A60SMP14 A60SMP14G 14 Wide Panel (356) 48.00 x 14.00 (1219 x 356) • •
A72SMP14 A72SMP14G 14 Wide Panel (356) 60.00 x 14.00 (1524 x 356) ••• ••• •• ••• •••
A90SMP14 A90SMP14G 14 Wide Panel (356) 78.00 x 14.00 (1981 x 356) • • • • • •
A72SMP20 A72SMP20G 20 Wide Panel (508) 60.00 x 20.00 (1524 x 508) ••• •• ••• •••
A90SMP20 A90SMP20G 20 Wide Panel (508) 78.00 x 20.00 (1981 x 508) • • • •
Catalog Number Description Panel Size
A60FSHDPS 2 Full-Length 57.25 (1454) • •a
A72FSHDPS Panel 69.25 (1759) ••• ••• •• ••• •••
A90FSHDPS Supports 87.25 (2216) • • • • • •
Millimeter dimensions are in ( ).
a Requires heavy duty panel supports
c Fits in top half or bottom half of enclosure
PANELS
SWINGOUT PANELS
SIDEMOUNT PANELS
HEAVY DUTY PANEL SUPPORTS
Industrial+Automation+Supply!–!www.iasinc.com!,!Tel:!800,736,2345!

PH 763.422.2211 • FAX 763.422.2600 • PENTAIRPROTECT.COMEQUIPMENT PROTECTION STAINLESS STEEL 207
2
FLOORMOUNT AND FREESTAND ENCLOSURES Floor-mount and Free-stand enClosures
FLOORMOUNT AND FREESTAND ENCLOSURES FLOOR-MOUNT AND FREE-STAND ENCLOSURES
Spec-00382 H PH 763.422.2211 • FAX 763.422.2600 • PENTAIRPROTECT.COMEQUIPMENT PROTECTION SOLUTIONS STAINLESS STEEL 2
Two-Door
Single-Access
Enclosures
A604818SSFSD
A724818SSFSD
A726018SSFSD
A727218SSFSD
A904820SSFSD
A907220SSFSD
A724824SSFSD
A726024SSFSD
A727224SSFSD
A907224SSFSD
A726036SSFSD
A907236SSFSD
Catalog Number
Steel Conductive Description Panel Size
A60P24F1 A60P24F1G Full Panel 48.00 x 20.00 (1219 x 508) •b•a,b •a,b •a,b
A60P24F2 A60P24F2G Half Panel 24.88 x 20.00 (632 x 508) •b•a,b •a,b •a,b
A72P24F1 A72P24F1G Full Panel 60.00 x 20.00 (1524 x 508) •b•a,b •b
A72P24F2 A72P24F2G Half Panel 30.88 x 20.00 (784 x 508) •a,b •b•a,b •b
A90P24F1 A90P24F1G Full Panel 78.00 x 20.00 (1981 x 508) •b
A90P24F2 A90P24F2G Half Panel 39.00 x 20.00 (1013 x 508) •a,b •a,b •b•a,b
A72P30F1 A72P30F1G Full Panel 60.00 x 26.00 (1524 x 660) •b•b•b
A72P30F2 A72P30F2G Half Panel 30.88 x 26.00 (784 x 660) •b•b•b
A60P36F1 A60P36F1G Full Panel 48.00 x 32.00 (1219 x 813) •a,b •a,b •a,b •a,b •a,b
A60P36F2 A60P36F2G Half Panel 24.88 x 32.00 (632 x 813) •a,b •a,b •a,b •a,b •a,b
A72P36F1 A72P36F1G Full Panel 60.00 x 32.00 (1524 x 813) •b•a,b •b•a,b •a,b
A72P36F2 A72P36F2G Half Panel 30.88 x 32.00 (784 x 813) •b•a,b •b•a,b •a,b
A90P36F1 A90P36F1G Full Panel 78.00 x 32.00 (1981 x 813) •b•b•b
A90P36F2 A90P36F2G Half Panel 39.88 x 32.00 (1013 x 813) •a,b •b•a,b •b•b
Catalog Number Description Panel Size
A72SP24F3 Full Panel 60.00 x 18.81 (1524 x 478) •b•b
A72SP24F4 Half Panelc30.88 x 18.81 (784 x 478) •b•b
A72SP30F3 Full Panel 60.00 x 24.81 (1524 x 630) •b•b•b
A72SP30F4 Half Panelc30.88 x 24.81 (784 x 630) •b•b•b
A72SP36F3 Full Panel 60.00 x 30.81 (1524 x 783) •b•b
A72SP36F4 Half Panelc30.88 x 30.81 (784 x 783) •b•b
A90SP36F3 Full Panel 78.00 x 30.81 (1981 x 783) •b•b•b
A90SP36F4 Half Panelc39.88 x 30.81 (1013 x 783) •b•b•b
Catalog Number
Steel Conductive Description Panel Size
A60SMP14 A60SMP14G 14 Wide Panel (356) 48.00 x 14.00 (1219 x 356) •d
A72SMP14 A72SMP14G 14 Wide Panel (356) 60.00 x 14.00 (1524 x 356) •d•d•d• • • •
A90SMP14 A90SMP14G 14 Wide Panel (356) 78.00 x 14.00 (1981 x 356) • • • •
A72SMP20 A72SMP20G 20 Wide Panel (508) 60.00 x 20.00 (1524 x 508) •d•d•d•
A90SMP20 A90SMP20G 20 Wide Panel (508) 78.00 x 20.00 (1981 x 508) •d•
Catalog Number Description Panel Size
A60FSHDPS 2 Full-Length 57.25 (1454) •b
A72FSHDPS Panel 69.25 (1759) •b•b•b•b•b•b•b
A90FSHDPS Supports 87.25 (2216) •b•b•b•b
Millimeter dimensions are in ( ).
a Requires heavy duty panel supports
b Requires center panel supports
c Fits in top half or bottom half of enclosure
d Will not fit if other panels are also installed in same enclosure
PANELS
TYPE 12 FREESTAND ENCLOSURES ACCESSORY SELECTION
(SEE ACCESSORIES FOR DETAILS)
SWINGOUT PANELS
SIDEMOUNT PANELS
HEAVY DUTY PANEL SUPPORTS
Industrial+Automation+Supply!–!www.iasinc.com!,!Tel:!800,736,2345!

EQUIPMENT PROTECTIONSUBJECT TO CHANGE WITHOUT NOTICESTAINLESS STEEL208
2
FLOORMOUNT AND FREESTAND ENCLOSURES Floor-mount and Free-stand enClosures
FLOORMOUNT AND FREESTAND ENCLOSURES FLOOR-MOUNT AND FREE-STAND ENCLOSURES
Spec-00382 G
EQUIPMENT PROTECTION SOLUTIONSSUBJECT TO CHANGE WITHOUT NOTICESTAINLESS STEEL3
763.422.2211
763.422.2600
Spec-00382
G
STAINLE SS STEEL
FLOOR-MOUNT A ND FREE-STAND ENC LOSURES
FLOOR-MOUNT A ND FREE-STAND ENC LOSURES
TYPE 12 FREESTAND ENCLOSURES ACCESSORY SELECTION
(SEE ACCESSORIES FOR DETAILS)
Single-Door
Single-Access
Enclosures
Single-Door
Dual-Access
Enclosures
A602418SSFS
A722418SSFS
A723018SSFS
A723618SSFS
A902420SSFS
A903620SSFS
A603624SSFS
A722424SSFS
A723024SSFS
A723624SSFS
A903624SSFS
A723630SSFS
A723636SSFS
A903636SSFS
A722424SSFSDA
A723024SSFSDA
A723624SSFSDA
A903624SSFSDA
A722430SSFSDA
A722436SSFSDA
A723636SSFSDA
A903636SSFSDA
Catalog Number
Steel Conductive Description Panel Size
A60P48F1 A60P48F1G Full Panel 48.00 x 44.00 (1219 x 1118)
A72P48F1 A72P48F1G Full Panel 60.00 x 44.00 (1524 x 1118)
A72P48F2 A72P48F2G Half Panel 30.88 x 44.00 (784 x 1118)
A90P48F1 A90P48F1G Full Panel 78.00 x 44.00 (1981 x 1118)
A90P48F2 A90P48F2G Half Panel 39.88 x 44.00 (1013 x 1118)
A72P60F1 A72P60F1G Full Panel 60.00 x 56.00 (1524 x 1422)
A72P60F2 A72P60F2G Half Panel 30.88 x 56.00 (784 x 1422)
A72P72F1 A72P72F1G Full Panel 60.00 x 68.00 (1524 x 1727)
A72P72F2 A72P72F2G Half Panel 30.88 x 68.00 (784 x 1727)
A90P72F1 A90P72F1G Full Panel 78.00 x 68.00 (1981 x 1727)
A90P72F2 A90P72F2G Half Panel 39.88 x 68.00 (1013 x 1727)
Catalog Number Description
A60FSCPS Center Panel Support
A72FSCPS Center Panel Support
A90FSCPS Center Panel Support
Catalog Number Description
APS1420CN 1/4-20 Clamping Nut (Qty. 20) for Special Use ••••••••••••••••••••••
APS51616CN 1/4-18 Clamping Nut (Qty. 20) for Special Use ••••••••••••••••••••••
Catalog Number Description Size
DMCKC Set of 4 Casters 4 high x 3 diameter ••••••••••••••••••••••
Catalog
Number Description
For
Rack Size No. Unitsd
Angle
Length
A60RP24F5 2 Full-Length Angles 19 (483) 28 49.00 (1245) • • • • • • •
A60RP24F6 2 Half-Length Angles 19 (483) 15 26.25 (677) •
A72RP24F5 2 Full-Length Angles 19 (483) 35 61.25 (1556) • • • • • •
A72RP24F6 2 Half-Length Angles 19 (483) 18 31.50 (800) • • • • • •
A90RP24F5 2 Full-Length Angles 19 (483) 45 78.75 (2000) •
A90RP24F6 2 Half-Length Angles 19 (483) 23 40.25 (1022) • • • • • • •
A72RP30F5 2 Full-Length Angles 24 (610) 35 61.25 (1556) • • •
A72RP30F6 2 Half-Length Angles 24 (610) 18 31.50 (800) • • •
Millimeter dimensions are in ( ).
d Will not fit if other panels are also installed in same enclosure
PANELS
CENTER PANEL SUPPORTS
CLAMPING NUTS
CASTERS
RACK MOUNTING ANGLES LSTYLE (TYPE RP)
FOR 19 AND 24IN. EQUIPMENT
Industrial+Automation+Supply!–!www.iasinc.com!,!Tel:!800,736,2345!

PH 763.422.2211 • FAX 763.422.2600 • PENTAIRPROTECT.COMEQUIPMENT PROTECTION STAINLESS STEEL 209
2
FLOORMOUNT AND FREESTAND ENCLOSURES Floor-mount and Free-stand enClosures
FLOORMOUNT AND FREESTAND ENCLOSURES FLOOR-MOUNT AND FREE-STAND ENCLOSURES
Spec-00382 G PH 763.422.2211 • FAX 763.422.2600 • PENTAIRPROTECT.COMEQUIPMENT PROTECTION SOLUTIONS STAINLESS STEEL 4
TYPE 12 FREESTAND ENCLOSURES ACCESSORY SELECTION
(SEE ACCESSORIES FOR DETAILS) Two-Door
Single-Access
Enclosures
A604818SSFSD
A724818SSFSD
A726018SSFSD
A727218SSFSD
A904820SSFSD
A907220SSFSD
A724824SSFSD
A726024SSFSD
A727224SSFSD
A907224SSFSD
A726036SSFSD
A907236SSFSD
Catalog Number
Steel Conductive Description Panel Size
A60P48F1 A60P48F1G Full Panel 48.00 x 44.00 (1219 x 1118) • •a•a•a
A72P48F1 A72P48F1G Full Panel 60.00 x 44.00 (1524 x 1118) • •a•
A72P48F2 A72P48F2G Half Panel 30.88 x 44.00 (784 x 1118) •a• •a•
A90P48F1 A90P48F1G Full Panel 78.00 x 44.00 (1981 x 1118) •
A90P48F2 A90P48F2G Half Panel 39.88 x 44.00 (1013 x 1118) •a• •a
A72P60F1 A72P60F1G Full Panel 60.00 x 56.00 (1524 x 1422) • • •
A72P60F2 A72P60F2G Half Panel 30.88 x 56.00 (784 x 1422) • • •
A72P72F1 A72P72F1G Full Panel 60.00 x 68.00 (1524 x 1727) • •a• •a•a
A72P72F2 A72P72F2G Half Panel 30.88 x 68.00 (784 x 1727) • •a• •a•a
A90P72F1 A90P72F1G Full Panel 78.00 x 68.00 (1981 x 1727) • • •
A90P72F2 A90P72F2G Half Panel 39.88 x 68.00 (1013 x 1727) •a• •a• •
Catalog Number Description
A60FSCPS Center Panel Support •
A72FSCPS Center Panel Support ••• ••• •
A90FSCPS Center Panel Support • • • •
Catalog Number Description
APS1420CN 1/4-20 Clamping Nut (Qty. 20) for Special Use ••••••••••••
APS51616CN 1/4-18 Clamping Nut (Qty. 20) for Special Use ••••••••••••
Catalog Number Description Size
DMCKC Set of 4 Casters 4 high x 3 diameter ••••••••••••
Catalog Number Description
For
Rack Size No. UnitsdAngle Length
A60RP24F5 2 Full-Length Angles 19 (483) 28 49.00 (1245) •b•b•b•b
A60RP24F6 2 Half-Length Angles 19 (483) 15 26.25 (677) •b
A72RP24F5 2 Full-Length Angles 19 (483) 35 61.25 (1556) •b•b•b
A72RP24F6 2 Half-Length Angles 19 (483) 18 31.50 (800) •b•b•b
A90RP24F5 2 Full-Length Angles 19 (483) 45 78.75 (2000) •b
A90RP24F6 2 Half-Length Angles 19 (483) 23 40.25 (1022) •b•b•b•b
A72RP30F5 2 Full-Length Angles 24 (610) 35 61.25 (1556) •b•b•b
A72RP30F6 2 Half-Length Angles 24 (610) 18 31.50 (800) •b•b•b
Millimeter dimensions are in ( ).
a Requires heavy duty panel supports
b Requires center panel supports
d Will not fit if other panels are also installed in same enclosure
PANELS
CENTER PANEL SUPPORTS
CLAMPING NUTS
CASTERS
RACK MOUNTING ANGLES LSTYLE (TYPE RP)
FOR 19 AND 24IN. EQUIPMENT
Industrial+Automation+Supply!–!www.iasinc.com!,!Tel:!800,736,2345!

EQUIPMENT PROTECTIONSUBJECT TO CHANGE WITHOUT NOTICESTAINLESS STEEL210
2
FLOORMOUNT AND FREESTAND ENCLOSURES Floor-mount and Free-stand enClosures
FLOORMOUNT AND FREESTAND ENCLOSURES FLOOR-MOUNT AND FREE-STAND ENCLOSURES
Spec-00382 G
EQUIPMENT PROTECTION SOLUTIONSSUBJECT TO CHANGE WITHOUT NOTICESTAINLESS STEEL5
763.422.2211
763.422.2600
Spec-00382
G
STAINLE SS STEEL
FLOOR-MOUNT A ND FREE-STAND ENC LOSURES
FLOOR-MOUNT A ND FREE-STAND ENC LOSURES
TYPE 12 FREESTAND ENCLOSURES ACCESSORY SELECTION
(SEE ACCESSORIES FOR DETAILS)
Single-Door
Single-Access
Enclosures
Single-Door
Dual-Access
Enclosures
A602418SSFS
A722418SSFS
A723018SSFS
A723618SSFS
A902420SSFS
A903620SSFS
A603624SSFS
A722424SSFS
A723024SSFS
A723624SSFS
A903624SSFS
A723630SSFS
A723636SSFS
A903636SSFS
A722424SSFSDA
A723024SSFSDA
A723624SSFSDA
A903624SSFSDA
A722430SSFSDA
A722436SSFSDA
A723636SSFSDA
A903636SSFSDA
Catalog Number Description
For
Rack Size No. Unitsd
Angle
Length
A60rA19th 2 Full-Length Angles 19 (483) 28 49.00 (1245) • • • • • • •
A72rA19th 2 Full-Length Angles 19 (483) 35 61.25 (1556) • • • • • •
A90rA19th 2 Full-Length Angles 19 (483) 45 78.75 (2000) •
A72rA24th 2 Full-Length Angles 24 (610) 35 61.25 (1556) • • •
.
Catalog Number Description Size Fits
An1032 Clip Nut (Pkg of 20) #10-32 Zinc-Plated RA Type Mnt Angles • • • • • • • • • •
Catalog Number Description
For
Rack Size No. UnitsdPanel Space
A7230S0F19 Full Swing-Out Frame 19 (483) 33 57.88 (1470) • • •
A7236S0F19 Full Swing-Out Frame 19 (483) 33 57.88 (1470) • • • • • •
A9036S0F19 Full Swing-Out Frame 19 (483) 43 75.36 (1915) • • • • •
Millimeter dimensions are in ( ).
d 1 unit = 1.75 in. (44 mm)
RACK MOUNTING ANGLES USTYLE (TYPE RA)
FOR 19 AND 24IN. EQUIPMENT
CLIP NUT PACKAGE
19IN. SWINGOUT RACK MOUNTING FRAMES
Industrial+Automation+Supply!–!www.iasinc.com!,!Tel:!800,736,2345!

PH 763.422.2211 • FAX 763.422.2600 • PENTAIRPROTECT.COMEQUIPMENT PROTECTION STAINLESS STEEL 211
2
FLOORMOUNT AND FREESTAND ENCLOSURES Floor-mount and Free-stand enClosures
FLOORMOUNT AND FREESTAND ENCLOSURES FLOOR-MOUNT AND FREE-STAND ENCLOSURES
Spec-00382 G PH 763.422.2211 • FAX 763.422.2600 • PENTAIRPROTECT.COMEQUIPMENT PROTECTION SOLUTIONS STAINLESS STEEL 6
Two-Door
Single-Access
Enclosures
A604818SSFSD
A724818SSFSD
A726018SSFSD
A727218SSFSD
A904820SSFSD
A907220SSFSD
A724824SSFSD
A726024SSFSD
A727224SSFSD
A907224SSFSD
A726036SSFSD
A907236SSFSD
Catalog Number Description
For
Rack Size No. UnitsdAngle Length
A60rA19th 2 Full-Length Angles 19 (483) 28 49.00 (1245) •b•b•b•b
A72rA19th 2 Full-Length Angles 19 (483) 35 61.25 (1556) •b•b•b
A90rA19th 2 Full-Length Angles 19 (483) 45 78.75 (2000) •b
A72rA24th 2 Full-Length Angles 24 (610) 35 61.25 (1556) •b•b•b
.
Catalog Number Description Size Fits
An1032 Clip Nut (Pkg of 20) #10-32 Zinc-Plated RA Type Mnt Angles • • • • • • •
Catalog Number Description
For
Rack Size No. UnitsdPanel Space
A7230S0F19 Full Swing-Out Frame 19 (483) 33 57.88 (1470) •b•b•b
A7236S0F19 Full Swing-Out Frame 19 (483) 33 57.88 (1470) •b•b
A9036S0F19 Full Swing-Out Frame 19 (483) 43 75.36 (1915) •b•b•b
Millimeter dimensions are in ( ).
b Requires center panel support(s) for installation
d 1 unit = 1.75 in. (44 mm)
RACK MOUNTING ANGLES USTYLE (TYPE RA)
FOR 19 AND 24IN. EQUIPMENT
CLIP NUT PACKAGE
19IN. SWINGOUT RACK MOUNTING FRAMES
TYPE 12 FREESTAND ENCLOSURES ACCESSORY SELECTION
(SEE ACCESSORIES FOR DETAILS)
Industrial+Automation+Supply!–!www.iasinc.com!,!Tel:!800,736,2345!

EQUIPMENT PROTECTIONSUBJECT TO CHANGE WITHOUT NOTICESTAINLESS STEEL212
2
FLOORMOUNT AND FREESTAND ENCLOSURES Floor-mount and Free-stand enClosures
FLOORMOUNT AND FREESTAND ENCLOSURES FLOOR-MOUNT AND FREE-STAND ENCLOSURES
Spec-00382 G
EQUIPMENT PROTECTION SOLUTIONSSUBJECT TO CHANGE WITHOUT NOTICESTAINLESS STEEL7
763.422.2211
763.422.2600
Spec-00382
G
STAINLE SS STEEL
FLOOR-MOUNT A ND FREE-STAND ENC LOSURES
FLOOR-MOUNT A ND FREE-STAND ENC LOSURES
TYPE 12 FREESTAND ENCLOSURES ACCESSORY SELECTION
(SEE ACCESSORIES FOR DETAILS)
Single-Door
Single-Access
Enclosures
Single-Door
Dual-Access
Enclosures
A602418SSFS
A722418SSFS
A723018SSFS
A723618SSFS
A902420SSFS
A903620SSFS
A603624SSFS
A722424SSFS
A723024SSFS
A723624SSFS
A903624SSFS
A723630SSFS
A723636SSFS
A903636SSFS
A722424SSFSDA
A723024SSFSDA
A723624SSFSDA
A903624SSFSDA
A722430SSFSDA
A722436SSFSDA
A723636SSFSDA
A903636SSFSDA
Catalog
Number Description
For
Rack Size No. Unitsd
Angle
Length
A60rA19th 2 Full-Length Angles 19 (483) 28 49.00 (1245) • • • • • • •
A72rA19th 2 Full-Length Angles 19 (483) 35 61.25 (1556) • • • • • •
A90rA19th 2 Full-Length Angles 19 (483) 45 78.75 (2000) •
A72rA24th 2 Full-Length Angles 24 (610) 35 61.25 (1556) • • •
.
Catalog Number Description Size Fits
An1032 Clip Nut (Pkg of 20) #10-32 Zinc-Plated RA Type Mnt Angles • • • • • • • • • •
Catalog
Number Description
For
Rack Size No. UnitsdPanel Space
A7230S0F19 Full Swing-Out Frame 19 (483) 33 57.88 (1470) • • •
A7236S0F19 Full Swing-Out Frame 19 (483) 33 57.88 (1470) • • • • • •
A9036S0F19 Full Swing-Out Frame 19 (483) 43 75.36 (1915) • • • • •
Catalog Number Description Fits Drawer
A19wSdr Hinged Surface A19DR2U, A19DR4U • •a•a•a
dl29wSHinged Surface DL329DR, DL729DR •a•a
Catalog Number Description For Rack Size Number of Unitsd
A19ShP6 Pull-Out Shelf 19 (483) 2 •a•a•a•a
dl29ShP Pull-Out Shelf 24 (610) 2 •a•a
A19Sh6 Fixed Shelf 19 (483) 1 •a•a•a•a
dl29Sh Fixed Shelf 24 (610) 1 •a•a
Catalog Number Description Number of Unitsd
AG1u6 Chassis Guides (2) 1 •a•a•a•a•a
AG1u8 Chassis Guides (2) 1•a•a
Millimeter dimensions are in ( ).
a Requires 2 sets U-style (Type RA) rack mounting angles for installation
d 1 unit = 1.75 in. (44 mm)
RACK MOUNTING ANGLES USTYLE (TYPE RA)
FOR 19 AND 24IN. EQUIPMENT
CLIP NUT PACKAGE
19IN. SWINGOUT RACK MOUNTING FRAMES
WRITING SURFACES
19 AND 24IN. RACKMOUNTED SHELVES
GUIDES FOR RACKMOUNTED SHELVES
Industrial+Automation+Supply!–!www.iasinc.com!,!Tel:!800,736,2345!

PH 763.422.2211 • FAX 763.422.2600 • PENTAIRPROTECT.COMEQUIPMENT PROTECTION STAINLESS STEEL 213
2
FLOORMOUNT AND FREESTAND ENCLOSURES Floor-mount and Free-stand enClosures
FLOORMOUNT AND FREESTAND ENCLOSURES FLOOR-MOUNT AND FREE-STAND ENCLOSURES
Spec-00382 G PH 763.422.2211 • FAX 763.422.2600 • PENTAIRPROTECT.COMEQUIPMENT PROTECTION SOLUTIONS STAINLESS STEEL 8
TYPE 12 FREESTAND ENCLOSURES ACCESSORY SELECTION
(SEE ACCESSORIES FOR DETAILS)
Two-Door
Single-Access
Enclosures
A604818SSFSD
A724818SSFSD
A726018SSFSD
A727218SSFSD
A904820SSFSD
A907220SSFSD
A724824SSFSD
A726024SSFSD
A727224SSFSD
A907224SSFSD
A726036SSFSD
A907236SSFSD
Catalog Number Description
For
Rack Size No. UnitsdAngle Length
A60rA19th 2 Full-Length Angles 19 (483) 28 49.00 (1245) •b•b•b•b
A72rA19th 2 Full-Length Angles 19 (483) 35 61.25 (1556) •b•b•b
A90rA19th 2 Full-Length Angles 19 (483) 45 78.75 (2000) •b
A72rA24th 2 Full-Length Angles 24 (610) 35 61.25 (1556) •b•b•b
Catalog Number Description Size Fits
An1032 Clip Nut (Pkg of 20) #10-32 Zinc-Plated RA Type Mnt Angles • • • • • • •
Catalog Number Description
For
Rack Size No. UnitsdPanel Space
A7230S0F19 Full Swing-Out Frame 19 (483) 33 57.88 (1470) •b•b•b
A7236S0F19 Full Swing-Out Frame 19 (483) 33 57.88 (1470) •b•b
A9036S0F19 Full Swing-Out Frame 19 (483) 43 75.36 (1915) •b•b•b
Catalog Number Description Fits Drawer
A19wSdr Hinged Surface A19DR2U, A19DR4U •a
dl29wSHinged Surface DL329DR, DL729DR •a•a
Catalog Number Description For Rack Size Number of Unitsd
a19shp6 Pull-Out Shelf 19 (483) 2 •a
dl29shp Pull-Out Shelf 24 (610) 2 •a•a
a19sh6 Fixed Shelf 19 (483) 1 •a
dl29sh Fixed Shelf 24 (610) 1 •a•a
Catalog Number Description Number of Unitsd
AG1u6 Chassis Guides (2) 1 •a•a•a
AG1u8 Chassis Guides (2) 1•a
Millimeter dimensions are in ( ).
a Requires 2 sets U-style (Type RA) rack mounting angles for installation
b Requires center panel support(s) for installation
d 1 unit = 1.75 in. (44 mm)
RACK MOUNTING ANGLES USTYLE (TYPE RA)
FOR 19 AND 24IN. EQUIPMENT
CLIP NUT PACKAGE
19IN. SWINGOUT RACK MOUNTING FRAMES
19 AND 24IN. RACKMOUNTED SHELVES
GUIDES FOR RACKMOUNTED SHELVES
WRITING SURFACES
Industrial+Automation+Supply!–!www.iasinc.com!,!Tel:!800,736,2345!

EQUIPMENT PROTECTIONSUBJECT TO CHANGE WITHOUT NOTICESTAINLESS STEEL214
2
FLOORMOUNT AND FREESTAND ENCLOSURES Floor-mount and Free-stand enClosures
FREESTAND, TYPE 12
INDUSTRY STANDARDS
UL 508A Listed; Type 12; File No. E61997
cUL Listed per CSA C22.2 No 94; Type 12; File No. E61997
NEMA/EEMAC Type 12
E.I.A. RS-310-D
CSA File No. 42186: Type 12
IEC 60529, IP55
APPLICATION
Designed to house systems incorporating large components or
complex mounting configurations. Three-point latching and sealing
provide industry-leading protection from dust, dirt, oil and water.
These enclosures are used in machine tool applications for housing
motor starters, drives, contactors and PLCs, as well as a wide
variety of other electrical and electronic equipment. The addition
of 19-in. rack-mounting accessories makes these enclosures
ideal for providing rugged protection for sensitive rack-mounted
components in harsh industrial environments. These enclosures
are used extensively in automotive, pulp and paper, wood products,
textile and similar industries.
SPECIFICATIONS
• 12 gauge Type 304 stainless steel
• Seams continuously welded and ground smooth; no holes or
knockouts
• Stiffeners welded to back of enclosures maintain flatness and
increase rigidity
• Heavy-duty lifting eyes are Type 316 stainless steel
• Plated steel 3-point latching and keylocking handle
• Latch rods have rollers for easier door closing
• Heavy-gauge continuous hinges support each door
• Data pocket, provided on door(s) with 3-point latches, is high-
impact thermoplastic
• Mounting channels welded horizontally to interior body sides at
top, bottom and center
• Optional panels and rack-mounting angles can be mounted
anywhere along channels
• Oil-resistant door gasket attached with oil-resistant adhesive and
held in place with steel retaining strips
• Bonding provision on door; grounding studs on body
• Accessory mounting channel provided in enclosure top
FINISH
Enclosures are unpainted. Cover, sides, top and bottom have smooth
#4 brushed finish. Optional steel panels, swing-out panels, side-
mounted panels, rack-mounting frames, heavy-duty panel supports
and center panel supports are painted white. Optional full, half and
side-mounted conductive panels are available.
ACCESSORIES
See also Accessories.
Electrical Interlocks
Floor Stand Kit, Stainless Steel
Fluorescent Light Package
Center Panel Supports
Panels for Type 3R, 4, 4X, 12 and 13 Enclosures
MODIFICATION AND CUSTOMIZATION
Hoffman excels at modifying and customizing products to your
specifications. Contact your local Hoffman sales office or distributor
for complete information.
BULLETIN: A30S
Industrial+Automation+Supply!–!www.iasinc.com!,!Tel:!800,736,2345!

PH 763.422.2211 • FAX 763.422.2600 • PENTAIRPROTECT.COMEQUIPMENT PROTECTION STAINLESS STEEL 215
2
FLOORMOUNT AND FREESTAND ENCLOSURES Floor-mount and Free-stand enClosures
Standard Product
Catalog Number AxBxC in./mm
F
in./mm
G
in./mm
H
in./mm
J
in./mm
A604818SSFSD 60.06 x 48.06 x 18.06
1526 x 1221 x 472
32.03
814
23.12
587
19.88
505
20.03
509
A724818SSFSD 72.06 x 48.06 x 18.06
1830 x 1221 x 472
38.03
966
29.12
740
23.88
607
24.03
610
A724824SSFSD 72.06 x 48.06 x 24.06
1830 x 1221 x 611
38.03
966
29.12
740
23.88
607
24.03
610
A726018SSFSD 72.06 x 60.06 x 18.06
1830 x 1526 x 472
38.03
966
29.12
740
23.88
607
24.03
610
A726024SSFSD 72.06 x 60.06 x 24.06
1830 x 1526 x 611
38.03
966
29.12
740
23.88
740
23.88
607
A726036SSFSD 72.06 x 60.06 x 36.06
1830 x 1526 x 916
38.03
966
29.12
740
23.88
607
24.03
610
A727218SSFSD 72.06 x 72.06 x 18.06
1830 x 1830 x 472
38.03
966
29.12
740
23.88
607
24.03
610
A727224SSFSD 72.06 x 72.06 x 24.06
1830 x 1830 x 611
38.03
966
29.12
740
23.88
607
24.03
610
A904820SSFSD 90.06 x 48.06 x 20.06
2288 x 1221 x 510
47.03
1195
38.12
968
29.88
759
30.03
763
A907220SSFSD 90.06 x 72.06 x 20.06
2288 x 1830 x 510
47.03
1195
38.12
968
29.88
759
30.03
763
A907224SSFSD 90.06 x 72.06 x 24.06
2288 x 1830 x 611
47.03
1195
38.12
968
29.88
759
30.03
763
A907236SSFSD 90.06 x 72.06 x 36.06
2288 x 1830 x 916
47.03
47.03
38.12
968
29.88
759
30.03
763
Purchase panels and accessories separately.
%
%
%
$
$
+
-
&
)
;
;
<
<
*
*
$
%
;;
%
<<
&&
Industrial+Automation+Supply!–!www.iasinc.com!,!Tel:!800,736,2345!

EQUIPMENT PROTECTIONSUBJECT TO CHANGE WITHOUT NOTICESTAINLESS STEEL216
2
HOFFMAN WATERSHED™ FREESTAND ENCLOSURES AND ACCESSORIES HoFFman WatersHed™ Free-stand
HOFFMAN WATERSHE D™ FREE-STAND ENCLOS URES AND ACCE SSORIES
HOFFMAN WATERSHED™ FREE-STAND
WATERSHED™ FREESTAND, TYPE 4X
INDUSTRY STANDARDS
UL 508A Listed; Type 4, 4X, 12; File Number E61997
cUL Listed per CSA C22.2 No 94; Type 4, 4X, 12; File Number
E61997
NSF 169
NEMA/EEMAC Type 4, 4X, 12
IEC 60529, IP66
APPLICATION
The Hoffman WATERSHED™ stainless steel free-stand enclosure,
with its unique design and Type 4X rating, is a perfect fit for
mounting electrical or high-tech electronic equipment in a variety
of indoor and outdoor settings. Its unique features are specifically
designed for use in sanitary washdown production environments
like food, beverage, or pharmaceutical processing. However, these
same features also are useful in petrochemical plants, pulp and
paper facilities and waste-water treatment plants.
SPECIFICATIONS
• Manufactured from 12 gauge Type 304 stainless steel
• Seams continuously welded and ground smooth
• Smooth Type 304 stainless steel lift-off bullet-style hinges
• Hinges are shielded by cover edges
• Hinged side of cover has provisions to allow direct flushing of
hinge area
• 20-degree sloped top facilitates runoff of water and cleaning
solutions and prohibits the placement of objects on the top of the
enclosure
• 170-degree door opening
• Door edges are sloped 20 degrees at top and bottom edges to
facilitate runoff
• Slanted flange trough collar prohibits pooling of fluids along the
top edge of the enclosure opening
• Three-point latching operated by POWERGLIDE® Type 316L
padlocking stainless steel handles
• Seamless foam-in-place one-piece gasket provides oil-tight and
dust-tight seal against contaminants
• Bonding provision on doors; grounding studs on body
• Accessory mounting channel provided in enclosure top
• Panel studs fit optional NEMA style panels
• Mounting holes in bottom of enclosure for direct mounting or for
optional sanitary legs and stainless steel floor stands
• Furnished hardware kit consists of panel mounting nuts,
grounding hardware and hole seals for mounting holes
FINISH
Stainless steel enclosures are unpainted. External surfaces have
a #4 brushed finish. Optional mild steel panels are painted white.
Optional conductive panels are available.
ACCESSORIES
See also Accessories.
Industrial Corrosion Inhibitors
Floor Stand Kit, Stainless Steel
PANELITE™ Enclosure Lights Overview
Panels for Type 3R, 4, 4X, 12 and 13 Enclosures
Sanitary Leg Kits
BULLETIN: WS2
Standard Product
Catalog Number AxBxC in./mm
A1
in./mm
A2
in./mm
B
in./mm
C
in./mm Panel Conductive Panel
WS625112SS 62.00 x 51.00 x 12.00
1575 x 1295 x 305
62.81
1595
67.20
1700
51.09
1298
12.12
308
A60P48 A60P48G
WS625118SS 62.00 x 51.00 x 18.00
1575 x 1295 x 457
62.81
1595
69.38
1700
51.09
1298
18.12
460
A60P48 A60P48G
WS626312SS 62.00 x 63.00 x 12.00
1575 x 1600 x 305
62.81
1595
67.20
1700
63.09
1602
12.12
308
A60P60 A60P60G
WS626318SS 62.00 x 63.00 x 18.00
1575 x 1600 x 457
62.81
1595
69.38
1700
63.09
1602
18.12
460
A60P60 A60P60G
WS746312SS 74.00 x 63.00 x 12.00
1880 x 1600 x 305
74.81
1900
79.20
2012
63.09
1602
12.12
308
A72P60 A72P60G
WS746318SS 74.00 x 63.00 x 18.00
1880 x 1600 x 457
74.81
1900
81.38
2067
63.09
1602
18.12
460
A72P60 A72P60G
WS747512SS 74.00 x 75.00 x 12.00
1880 x 1905 x 305
74.81
1900
79.20
2012
75.09
1907
12.12
308
A72P72 A72P72G
WS747518SS 74.00 x 75.00 x 18.00
1880 x 1905 x 457
74.81
1900
81.38
2067
75.09
1907
18.12
460
A72P72 A72P72G
WS747524SS 74.00 x 75.00 x 24.00
1880 x 1905 x 610
74.81
1900
83.57
2123
75.09
1907
24.12
613
A72P72 A72P72G
A x B x C are nominal dimensions.
Purchase panels separately.
Industrial+Automation+Supply!–!www.iasinc.com!,!Tel:!800,736,2345!

PH 763.422.2211 • FAX 763.422.2600 • PENTAIRPROTECT.COMEQUIPMENT PROTECTION STAINLESS STEEL 217
2
HOFFMAN WATERSHED™ FREESTAND ENCLOSURES AND ACCESSORIES HoFFman WatersHed™ Free-stand
SANITARY LEG KITS
Sanitary Leg Kits provide space
between the enclosure and the floor
for better washdown accessibility.
Available with fixed or independently
adjustable legs. Adjustable leg
shown. Four legs per kit. Maintains
NEMA Type 4X rating when properly
installed on a Hoffman Type 4X
enclosure.
BULLETIN: WSY
Catalog Number Description Size L (in.) Size L (mm)
WSASLKSS Adjustable Sanitary Leg Kit 11.50 -12.50 292 -318
WSFSLKSS Fixed Sanitary Leg Kit 12.00 305
Industrial+Automation+Supply!–!www.iasinc.com!,!Tel:!800,736,2345!

EQUIPMENT PROTECTIONSUBJECT TO CHANGE WITHOUT NOTICESTAINLESS STEEL218
2
HOFFMAN WATERSHED™ FREESTAND ENCLOSURES AND ACCESSORIES HoFFman WatersHed™ Free-stand
FLOOR STAND KIT, STAINLESS STEEL
Use to raise free-stand enclosure. To install, drill holes in the
bottom of the enclosure and bolt the floor stands to the enclosure.
Each kit includes two stands. Type 304 stainless steel. Maintains
UL/cUL Type 4X rating when properly installed on a Hoffman Type
4X enclosure.
BULLETIN: A4SY
Catalog Number
H
in./mm
C
in./mm
L
in./mm
AFK1212SS 12.00
305
12.00
305
9.09
231
AFK1218SS 12.00
305
18.00
459
9.09
231
AFK1224SS 12.00
305
2406
611
9.09
231
Industrial+Automation+Supply!–!www.iasinc.com!,!Tel:!800,736,2345!

EQUIPMENT PROTECTIONSUBJECT TO CHANGE WITHOUT NOTICESTAINLESS STEEL220
2
PROLINE™ STAINLESS STEEL HMI ENCLOSURES proline™ Hmi enClosures
PROLINE™ STAINLESS STEEL HMI ENCLOSURES
PROLINE™ HMI ENCLOSURES
PROLINE™ STAINLESS STEEL HMI ENCLOSURES
INDUSTRY STANDARDS
Sloped Fronts, Front, Rear and Bottom Options
UL 508A Listed; Type 12; File Number E61997
cUL Listed per CSA C22.2 No 94; Type 12; File Number E61997
NEMA/EEMAC Type 4, 4X, 12
IEC 60529, IP66
APPLICATION
PROLINE™ Stainless Steel HMI Enclosures provide a
comprehensive system for housing Human-Machine Interface (HMI)
computers and related control devices in a corrosive environment.
With these enclosures you can develop a customized solution that
meets your application’s requirements exactly, including UL/CSA
Type 4X protection.
FEATURES
PROLINE HMI Enclosure System
Numerous PROLINE Components are available in stainless steel.
For optional stainless steel pendant arm mounting options, see
Hoffman CS480 and CS600 options.
See PROLINE Sloped Front HMI Enclosures in HMI - Human-Machine
Interface chapter for more information.
See PROLINE Assembled Enclosures in Modular Enclosure Systems
section for more information.
Sizes: PROLINE Stainless Steel HMI Enclosures fit most popular
HMI models. The basic enclosure has an ergonomically sloped front
that positions the screen for easy viewing.
Equipment Mounting: Grid straps, rack angles and panels are
available for all enclosure sizes. Large front and rear openings
provide easy access.
Enclosure Mounting: The PROLINE system includes several
optional mounting methods: stainless steel pendant arm systems,
stainless steel pedestals and stainless steel bases. Systems can
also be placed on tables, desks or flat surfaces.
Protection from the Harshest Environment: PROLINE Stainless
Steel HMI Enclosures meet tough NEMA Type 4X standards (IP
66). Enclosures are constructed of Type 304 stainless steel with
stainless steel external hardware. Foam-in-place gasketing
provides a tight, consistent seal.
ACCESSORIES
The front of the enclosure can be completed with a solid cover, solid
door or window door. A solid cover or access door can be selected
for the back. Solid or cutout bases for pedestal mounting are
available. Handle and locking options are offered for all doors.
Available with an additional front opening to accommodate several
accessory front options.
Industrial+Automation+Supply!–!www.iasinc.com!,!Tel:!800,736,2345!

EQUIPMENT PROTECTIONSUBJECT TO CHANGE WITHOUT NOTICESTAINLESS STEEL222
2
PROLINE™ STAINLESS STEEL HMI ENCLOSURES proline™ Hmi enClosures
SLOPED FRONT
Full front opening for door/cover options has a 5-degree slope.
Rear opening(s) for door and cover options. Optional PROLINE
frame shelf or PROLINE grid system is recommended to provide
a stationary platform for supporting deep equipment. The open
bottom is suitable for joining the top to a 700-mm-tall PROLINE
frame. The bottom of the 600 x 600-mm sizes can be joined through
a cutout base to a pedestal or pendant arm system. A support
bracket accessory allows the 600 x 600-mm sizes to be suspended
from an overhanging pendant arm. Sloped-front enclosures are
Type 304 stainless steel.
See PROLINE Sloped-Front HMI System and Accessories in the HMI -
Human-Machine Interface chapter for more information and drawings.
BULLETIN: P9S
Catalog Number AxB mm/in. Description
Nominal Size
mm/in.
Front Opening
E x G
mm/in.
Rear Opening
F x H
mm/in.
D
mm/in.
Internal
Mounting
J
mm/in.
Internal
Mounting
K
mm/in.
Product
Weight
(lb.)
PST766SS 707 x 608
27.85 x 23.94
Stainless Steel 700 x 600 x 600 641 x 536
25.22 x 21.11
636 x 536
25.02 x 21.11
481
18.92
525
20.67
525
20.67
68.0
COVERS FOR UPPER FRONT OF PROLINE™ SLOPED
FRONTS
Solid 16 gauge Type 304 stainless steel covers are secured to the
front opening of a PROLINE sloped front with semi-flush cover
screws along the top and bottom cover edges. Ground stud and
mounting hardware are included. Seamless foam-in-place gasket
assures a water-tight and dust-tight seal.
See PROLINE Sloped-Front HMI System and Accessories in the HMI -
Human-Machine Interface chapter for more information and drawings.
BULLETIN: P9S
Catalog Number Description
Cover Size
H x W
mm/in.
Product
Weight (lb.)
PCS58FSS Stainless Steel 506 x 792
19.93 x 31.17
23.0
PCS76FSS Stainless Steel 707 x 592
27.84 x 23.30
19.5
Industrial+Automation+Supply!–!www.iasinc.com!,!Tel:!800,736,2345!

PH 763.422.2211 • FAX 763.422.2600 • PENTAIRPROTECT.COMEQUIPMENT PROTECTION STAINLESS STEEL 223
2
PROLINE™ STAINLESS STEEL HMI ENCLOSURES proline™ Hmi enClosures
DOORS FOR UPPER FRONT OF PROLINE™ SLOPED
FRONTS
Solid 16 gauge Type 304 stainless steel doors are available with
or without windows. Doors are hinged at lower edge and have
quarter-turn latches. A stop arm assembly holds the door at 95
degrees (horizontal) from its closed position. Standard latch and
insert options are available. Ground stud and mounting hardware
are included. Seamless polyurethane foam-in-place gasket assures
water-tight and dust-tight seal.
Window doors feature a maximum size polycarbonate or glass
window .25-in. thick with a smoke gray tint. Window is field-
replaceable.
See PROLINE Sloped-Front HMI System and Accessories in the HMI -
Human-Machine Interface chapter for more information and drawings.
BULLETIN: P9S
Solid Doors
Catalog Number Description
Door Size
H x W
mm/in.
Product
Weight (lb.)
PDS56FSS Stainless Steel 504 x 592
19.86 x 23.30
21.5
PDS58FSS Stainless Steel 504 x 792
19.86 x 31.17
24.0
PDS76FSS Stainless Steel 705 x 592
27.77 x 23.30
20.5
Window Doors
Catalog Number Description
Door Size
H x W
mm/in.
Window Size
M x N
mm/in.
Product
Weight
(lb.)
PDW58FSS Stainless Steel 504 x 792
19.86 x 31.17
362 x 635
14.25 x 25.00
24.0
COVERS FOR REAR OF PROLINE™ SLOPED FRONTS
Solid 16 gauge Type 304 stainless steel cover fits rear opening
of PROLINE sloped fronts and is secured with semi-flush cover
screws along right and left cover edges. Use PROLINE frame shelf
or PROLINE grid straps to support the operator interface. Seamless
foam-in-place gasket assures water-tight and dust-tight seal.
Ground stud and mounting hardware are included. Optional tamper-
resistant screws are available.
See PROLINE Sloped Front HMI Enclosures in HMI - Human-Machine
Interface chapter for more information.
BULLETIN: P9S
Catalog Number Description
Cover Size
H x W
mm/in.
Product
Weight (lb.)
PCS76RSS Stainless Steel 596 x 706
23.47 x 27.79
23.0
PCS5A6RSS Stainless Steel 679 x 597
26.75 x 23.51
21.0
Industrial+Automation+Supply!–!www.iasinc.com!,!Tel:!800,736,2345!

EQUIPMENT PROTECTIONSUBJECT TO CHANGE WITHOUT NOTICESTAINLESS STEEL224
2
PROLINE™ STAINLESS STEEL HMI ENCLOSURES proline™ Hmi enClosures
DOORS FOR REAR OF PROLINE™ SLOPED FRONTS
Solid 16 gauge Type 304 stainless steel rear doors are side-hinged.
The hinges are hidden and provide 130-degree door swing. Optional
PROLINE 180-degree hinge kit is available. Doors can be hinged
from left or right. Door includes two-point latching with a flush
slotted quarter-turn insert. Standard PROLINE handle and insert
options are available for retrofit (see Accessories for Solid Rear
Doors in HMI - Human-Machine Interface chapter). Use PROLINE
frame shelf or PROLINE grid straps to support the operator
interface. Ground stud and mounting hardware are included.
Seamless foam-in-place gasket assures a water-tight and dust-
tight seal.
See PROLINE Sloped Front HMI Enclosures in HMI - Human-Machine
Interface chapter for more information.
BULLETIN: P9S
Catalog Number Description
Door Size
H x W
mm/in.
Product
Weight
(lb.)
PDS76RSS Stainless Steel 706 x 592
27.79 x 23.30
19.5
PROLINE™ SOLID REAR DOOR ACCESSORIES
Accessories listed here are designed for use with PROLINE Sloped
Front rear doors.
See PROLINE Accessories in the Modular Enclosure Systems chapter.
BULLETIN: P20, UX1Y
Flush Handle
Catalog Number Description
PSHKBL One handle and two keys
Data Pockets
Catalog Number Description
ADP1 Small data pocket
ADP2 Large data pocket
Key Inserts
Catalog Number Description
PKOTM7 7-mm triangle
PKOTM8 8-mm triangle
PKOTM65 CNOMO
PKOSM7 7-mm square
PKOSM8 8-mm square
PKODBK3 Double-bit with 13-mm pin
STAINLESS STEEL PEDESTAL
Pedestal is 36-in. (914-mm) tall
and provides optimal viewing and
operating height. Tube is 14 gauge
Type 304 one-piece construction.
Legs are 7 gauge Type 304 for
rigidity. Cable access plate and leg
levelers are included. Leg levelers
can be removed for anchoring
pedestal to floor. Pedestal has
smooth vertical brushed finish.
Pedestal will accept pedestal
accessories that are not stainless
steel. These include swivel tilt, swivel
and angle adapters.
BULLETIN: P1S
Catalog Number A in./mm Description
AP36SS 36.00
914
Stainless steel pedestal
Industrial+Automation+Supply!–!www.iasinc.com!,!Tel:!800,736,2345!

PH 763.422.2211 • FAX 763.422.2600 • PENTAIRPROTECT.COMEQUIPMENT PROTECTION STAINLESS STEEL 225
2
PROLINE™ STAINLESS STEEL HMI ENCLOSURES proline™ Hmi enClosures
STAINLESS STEEL EXTENSION
Pedestal extension can be ordered
separately to provide additional 6
in. (152 mm) of height for standing
position. Extension is 14 gauge Type
304 stainless steel with a smooth
brushed finish.
Extension will accept pedestal
accessories that are not stainless
steel. These include swivel tilt, swivel
and angle adapters.
BULLETIN: P1S
Catalog Number Description
APE6SS Stainless Steel
Industrial+Automation+Supply!–!www.iasinc.com!,!Tel:!800,736,2345!

EQUIPMENT PROTECTIONSUBJECT TO CHANGE WITHOUT NOTICESTAINLESS STEEL226
2
PROLINE™ STAINLESS STEEL HMI ENCLOSURES proline™ Hmi enClosures
STAINLESS STEEL PROLINE™PC PACKAGE, TYPE 12
INDUSTRY STANDARDS
UL 508A Listed; Type 12; File No. E61997
cUL Listed per CSA C22.2 No 94; Type 12; File No. E61997
NEMA Type 12
CSA File No. 42186: Type 12
IEC 60529, IP55
VDE IP55
APPLICATION
This enclosure offers effective protection for computer systems in
industrial environments. Three separate compartments within the
enclosure can be used to protect computer monitors, keyboards,
CPUs, printers and other peripheral equipment.
The 19-in. diagonal top window door, hinged on the left, offers
viewing access for a variety of monitor sizes and has a small flush
swing handle with keylock for system security.
The vented frame shelf in the top compartment is constructed
of 16 gauge steel and finished with RAL 7035 textured light-gray
polyester powder paint.
The PROLINE™ keyboard compartment includes a locking feature,
an angled palm rest, a cable access port for wiring and integral
mouse pad holders for left-handed or right-handed persons.
The bottom compartment includes a solid door hinged on the left
with a small flush swing handle with keylocking. This compartment
can be used to install computer equipment, panel mounted
equipment or rack mounted control systems.
The frame is enclosed with solid sides, a solid top and a 100-mm
solid base.
A rear mounted solid door with a keylocking flush swing handle
offers rear access to the computer equipment and wiring.
For more information, see PROLINE Assembled Enclosures in the
Modular Enclosure Systems chapter.
FINISH
External components have a smooth #4 brushed finish.
External doors, sides, top and base are Type 304 stainless steel.
Keyboard compartment has RAL 9005 textured black polyester
powder paint finish.
ACCESSORIES
See also Accessories.
Caster Kit
Thermoplastic Data Pocket
MODIFICATION AND CUSTOMIZATION
Hoffman excels at modifying and customizing products to your
specifications. Contact your local Hoffman sales office or distributor
for complete information.
BULLETIN: P20, P20PC, P20S
Standard Product
Catalog Number AxBxC mm/in.
M
mm/in.
N
mm/in.
P
mm/in.
R
mm/in.
Top Door Height
mm/in.
Top Door Width
mm/in.
Bottom Door Height
mm/in.
Bottom Door Width
mm/in.
PPC1666SS 1688 x 608 x 599
66.46 x 23.94 x 23.58
343
13.50
365
14.40
585
23.06
1363
53.66
558
21.98
536
21.11
738
29.09
536
21.11
100-mm solid base is included in “A” dimension
Summary of Components Included in Assembled PROLINE-PC Packages
Catalog Number AxBxC mm/in. Component Qty.
PFPC1666 1580 x 599 x 588
62.20 x 23.58 x 23.15
Frame, steel 1
PT66SS 0.00 Solid top, stainless steel 1
PDS86SS 0.00 Solid door (bottom), stainless steel 1
PDWT86PCSS 0.00 Window door (top), stainless steel 1
PSS166SS 0.00 Solid side, stainless steel 2
PDS166SS 0.00 Solid door (rear), stainless steel 1
PB166SS 0.00 Solid base (100mm), stainless steel 1
PKBC6R 0.00 Black painted keyboard compartment 1
Additional Stainless Steel Components Available for PROLINE-PC Enclosures
Catalog Number mm/in. Component
PCSA6SS 0.00 Access cover
PDWG86SS 0.00 Window door (bottom)
PCST86PCSS 0.00 Solid cover (top)
PCS86SS 0.00 Solid cover (bottom)
PDST86PCSS 0.00 Solid cover (bottom)
Industrial+Automation+Supply!–!www.iasinc.com!,!Tel:!800,736,2345!

EQUIPMENT PROTECTIONSUBJECT TO CHANGE WITHOUT NOTICESTAINLESS STEEL228
2
PROLINE™ STAINLESS STEEL HMI ENCLOSURES proline™ Hmi enClosures
Industrial+Automation+Supply!–!www.iasinc.com!,!Tel:!800,736,2345!

EQUIPMENT PROTECTIONSUBJECT TO CHANGE WITHOUT NOTICESTAINLESS STEEL230
2
PROLINE™ STAINLESS STEEL HMI ENCLOSURES proline™ Hmi enClosures
STAINLESS STEEL PROLINE™SY PACKAGE, TYPE 12
INDUSTRY STANDARDS
UL 508A Listed; Type 12; File No. E61997
cUL Listed per CSA C22.2 No 94; Type 12; File No. E61997
NEMA Type 12
CSA File No. 42186: Type 12
IEC 60529, IP55
VDE IP55
APPLICATION
This enclosure is designed to protect many industrial operator
interface systems. Two separate compartments within the
enclosure can be used to protect panel- or rack-mounted control
systems, operator interface packages and a variety of other
electronic control components.
• The top compartment is open and can accommodate a variety of
front cover and door options
• Internal grid straps are factory-installed in top compartment to
provide support for operator interfaces
• The bottom door is hinged on the left and has an attractive
keylocking flush swing handle
• The solid rear door permits rear access to equipment and wiring
and includes a keylocking pushbutton handle
• Standard external components include solid sides, solid top and a
100-mm solid base
Order cover, door or window door for top front to complete the
enclosure. Solid covers with pre-fabricated operator interface
cutouts are available; consult Hoffman for ordering information.
For more information, see PROLINE Assembled Enclosures in the
Modular Enclosure Systems chapter.
FINISH
Stainless steel enclosures are unpainted. External components
have a smooth #4 brushed finish.
External doors, sides, top and base are Type 304 stainless steel.
ACCESSORIES
See also Accessories.
Caster Kit
Thermoplastic Data Pocket
MODIFICATION AND CUSTOMIZATION
Hoffman excels at modifying and customizing products to your
specifications. Contact your local Hoffman sales office or distributor
for complete information.
BULLETIN: P20, P20S, P20SY
Standard Product
Catalog Number AxBxC mm AxBxC in.
PSY1666SS 1600 x 600 x 600 63.00 x 23.60 x 23.60
Top and bottom door opening size: 29.09 x 21.11 in. (739 x 536 mm) on 600-mm wide; 29.09 x 28.98 in. (739 x 736 mm) on 800-mm wide.
Summary of Components Included in Assembled PROLINE-SY Package
Catalog Number AxBxC mm AxBxC in. Component Qty.
PFSY1666 0.00 Frame 1
PT66SS 0.00 Solid top, stainless steel 1
PDS166SS 0.00 Solid door (rear), stainless steel 1
PDS86SS 0.00 Solid door (bottom), stainless steel 1
PB066SS 0.00 Solid base (100 mm), stainless steel 1
PSS166SS 0.00 Solid side, stainless steel 2
PFHKBL 0.00 Flush pushbutton handle (keylock) 1
PSHKBL 0.00 Small flush swing handle 1
PGH3S7 0.00 Grid system strap 1
PGH3S6 0.00 Grid system strap 1
Additional Stainless Steel Components Available for PROLINE-SY Enclosure
Catalog Number mm in. Component
PDWG86SS 0.00 Window doors (top/bottom)
PCS86SS 0.00 Solid covers
PCSK4 0.00 Solid covers with OI cutouts
Industrial+Automation+Supply!–!www.iasinc.com!,!Tel:!800,736,2345!

EQUIPMENT PROTECTIONSUBJECT TO CHANGE WITHOUT NOTICESTAINLESS STEEL232
2
PROLINE™ STAINLESS STEEL HMI ENCLOSURES proline™ Hmi enClosures
Industrial+Automation+Supply!–!www.iasinc.com!,!Tel:!800,736,2345!





















