Product Detail Manual
2016-10-06
: Pdf 1000483395-Tech 1000483395-Tech B5 unilog
Open the PDF directly: View PDF
.
Page Count: 16

2METER
CENTERS
Siemens Industry, Inc. SPEEDFAX™ 2011 Product Catalog 2-119
Multi-family
Metering
Meter Centers
Uni-PAK Metering: Accessories
Selection
ECHS125 SUK350TANSK400
Accessories for All-In-One Units
Description
Catalog
Number
Lugs for NEMA Stud Kits
(2) #6-350 kcmil SUK350TA
(1) #2-600 kcmil SUK600TA
(2) #500-1000 kcmil SUK1000TA
NEMA Stud Kits
400 Amp Bus NEMA Stud Kit WPSK400
600 Amp Bus NEMA Stud Kit WPSK600
800 Amp Bus NEMA Stud Kit WPSK800
1000 Amp Bus NEMA Stud Kit WPK1000
Type “HD” Conduit Hubs
2” Conduit HubEC56854
2
½
" Conduit HubEC56855
3" Conduit Hub EC56856
3
½
" Conduit Hub EC56857
4" Conduit Hub EC56858
Closure Plate EC56933S
Type “RX” Conduit Hubs
¾" Conduit Hub EC38594
1" Conduit Hub EC38596
1
¼
"
Conduit Hub
EC38597
1
½
"
Conduit Hub
EC38598
2"
Conduit Hub
EC38599
2
½
"
Conduit Hub
EC38600
Closure Plate EC38595
Adapter plate for HD/RX
EC9747-1113
Cover Plate
Ring StyleECPP
Ringless Style ECP3
Filler Plates
1" Filler Plate ECQF3
4" to 2" Filler Plate ECCP3U
Old PAK Accessories
Description
Catalog
Number
5th Jaw Kit
All Types Grounded ECMM5J
Insulated ECMMI5J
Bypass Kits
Horn Bypass Kit ECHBK
NEMA Stud Kits (Meets EUSERC Requirements)
400 Amp Bus NEMA Stud Kit NSK400
600 Amp Bus NEMA Stud KitNSK600
Alternate Lug Kits
400 Amp Bus Lug Kit (2) #4-250 PLK400
600 Amp Bus Lug Kit (3) #6-250 PLK600
Not for use on lever bypass units.
Order NSK600 and PLK600 kits for use with 800 Amp
PAK. CU Cable only approved with 800A device.
Use Adapter plate with RX hubs for PAK units.
These items made of Adapter plate and equivalent RX
hub.
For use on WEP units only

2
METER
CENTERS
Siemens Industry, Inc. SPEEDFAX™ 2011 Product Catalog
2-120
Multi-family
Metering
Meter Centers
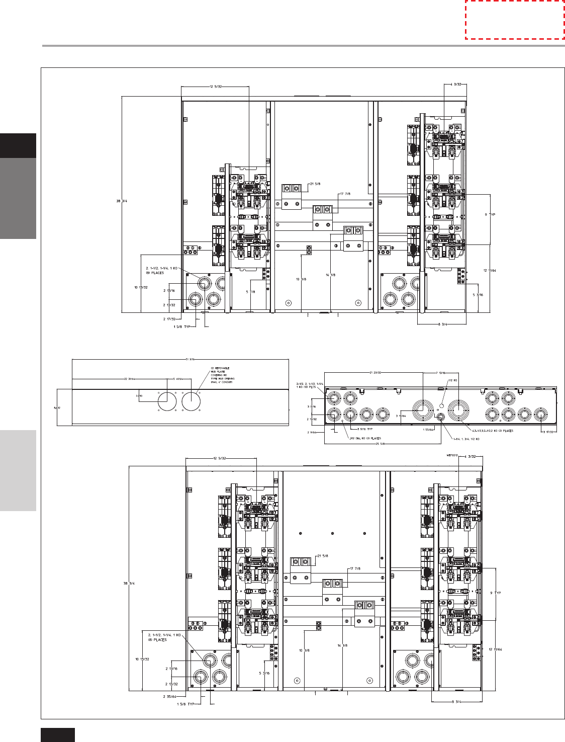
Uni-PAK Metering: Dimensional & Knockout Diagrams
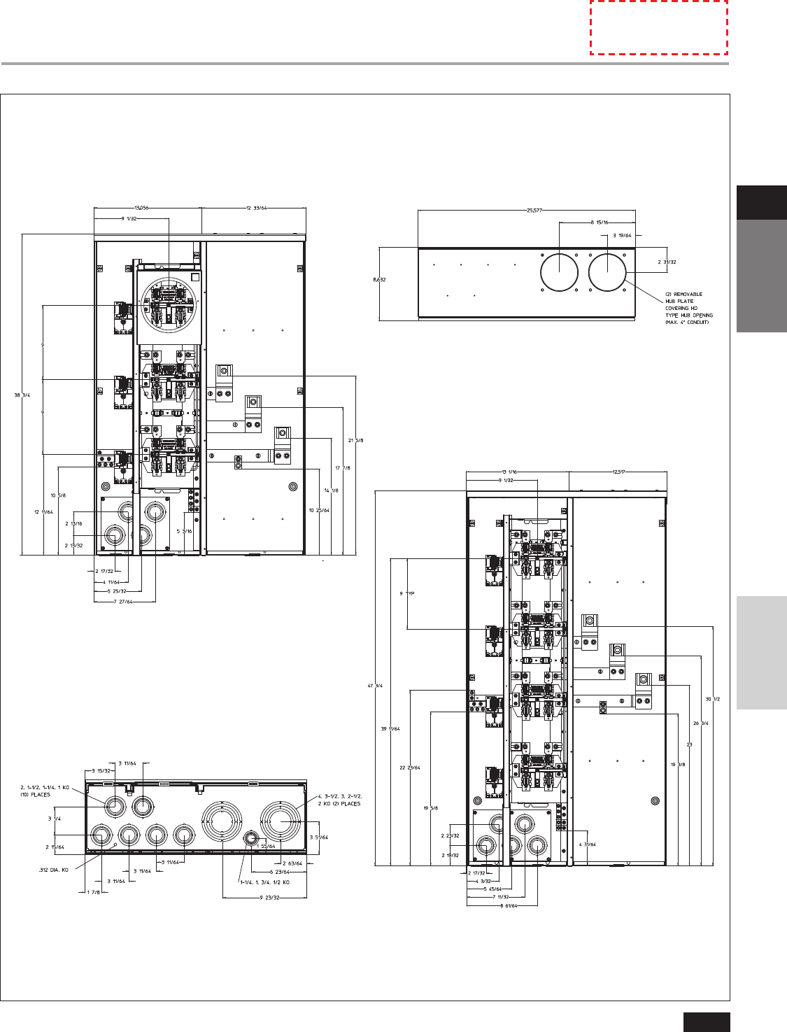
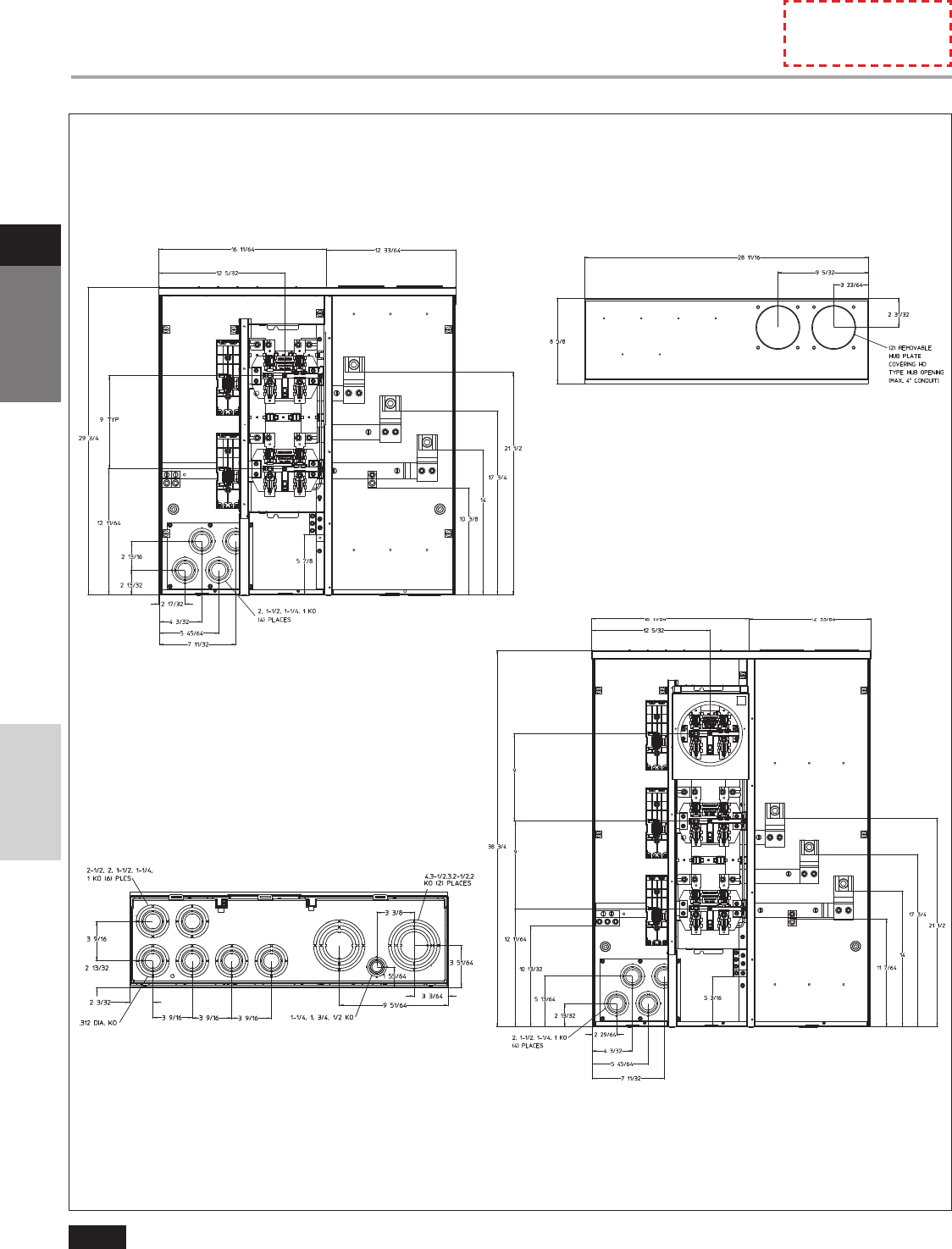
WP2211
WEP2211
Top view for
WP2211 and WEP2211
Bottom view for
WP2211 and WEP2211
• Revised •
12/15/11

2METER
CENTERS
Siemens Industry, Inc. SPEEDFAX™ 2011 Product Catalog 2-121
Multi-family
Metering
Meter Centers
Uni-PAK Metering: Dimensional & Knockout Diagrams
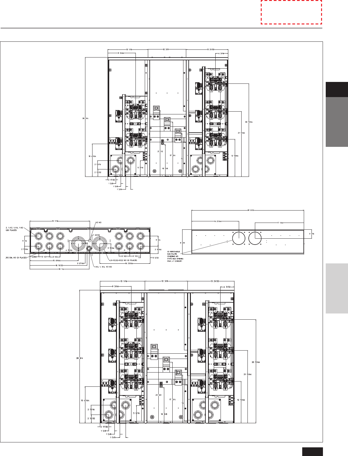
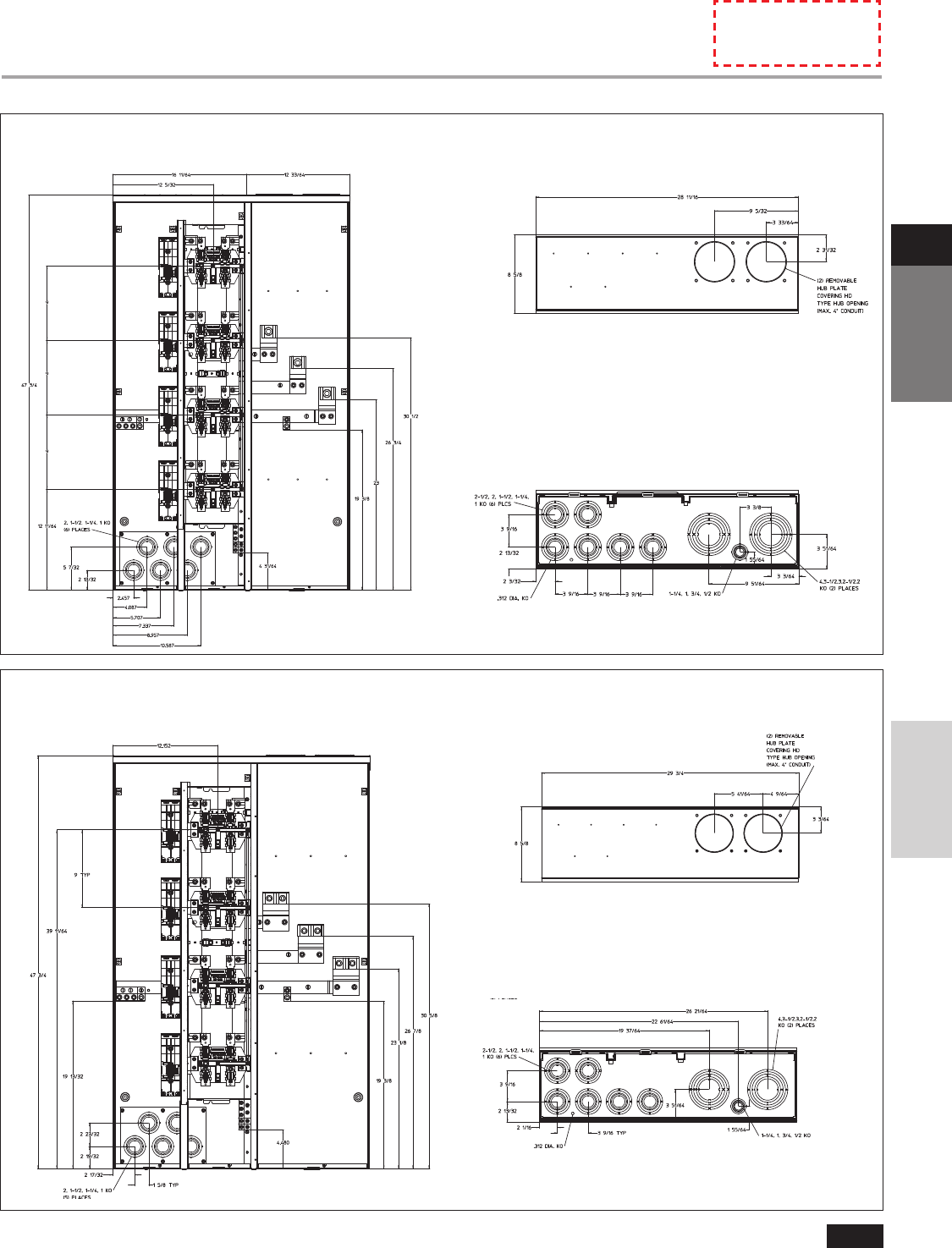
WP3311
WEP3311
WP4411
WEP4411
Top view for
WP3311, WP4411, WEP3311 and WEP4411
Bottom view for
WP3311, WP4411, WEP3311 and WEP4411
• Revised •
12/15/11

2
METER
CENTERS
Siemens Industry, Inc. SPEEDFAX™ 2011 Product Catalog
2-122
Multi-family
Metering
WP5411
WEP5411
Top view for
WP5411
Top view for
WEP5411
Bottom view for
WP5411
Bottom view for
WEP5411
Meter Centers
Uni-PAK Metering: Dimensional & Knockout Diagrams
• Revised •
12/15/11

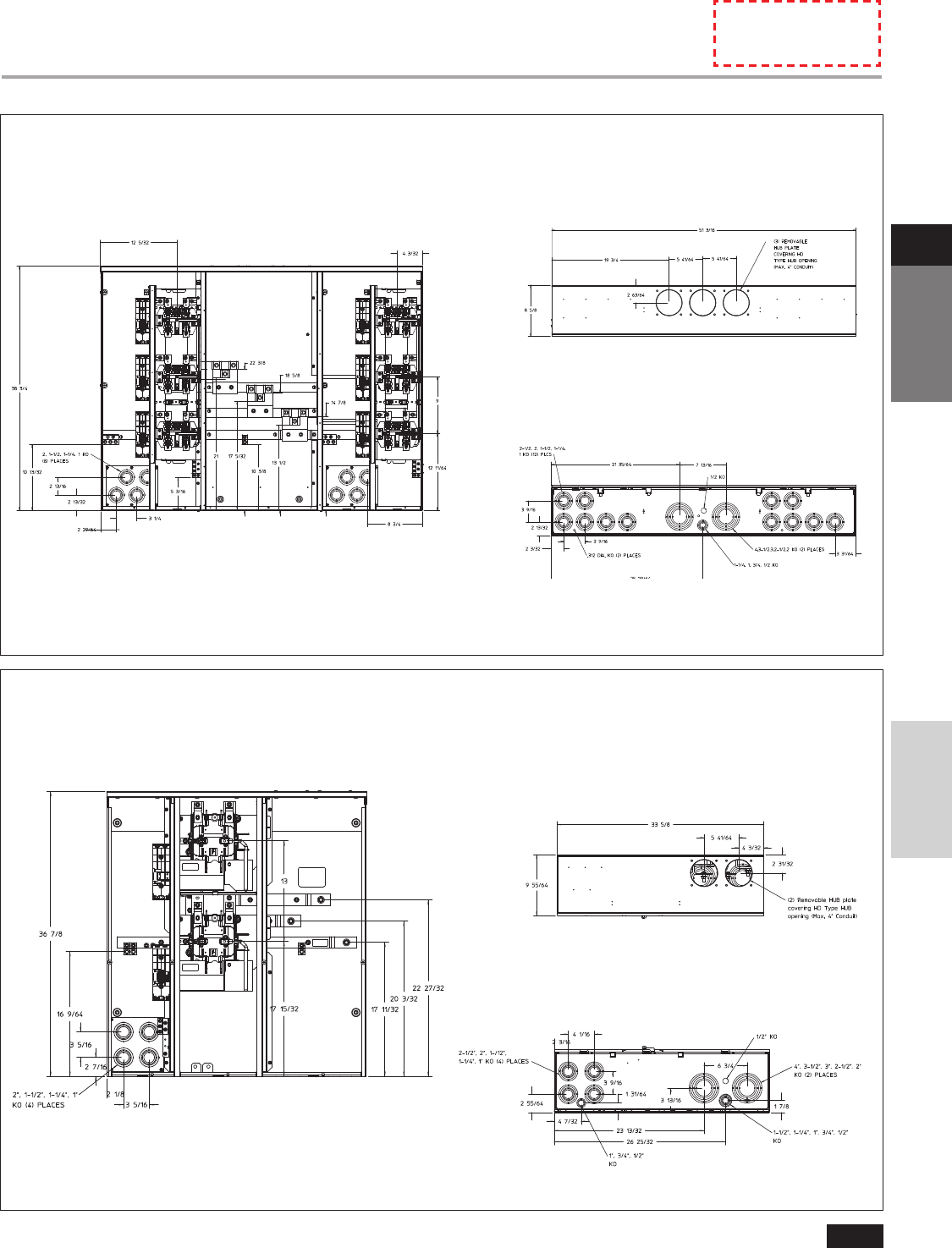
2METER
CENTERS
Siemens Industry, Inc. SPEEDFAX™ 2011 Product Catalog 2-123
Multi-family
Metering
Meter Centers
Uni-PAK Metering: Dimensional & Knockout Diagrams
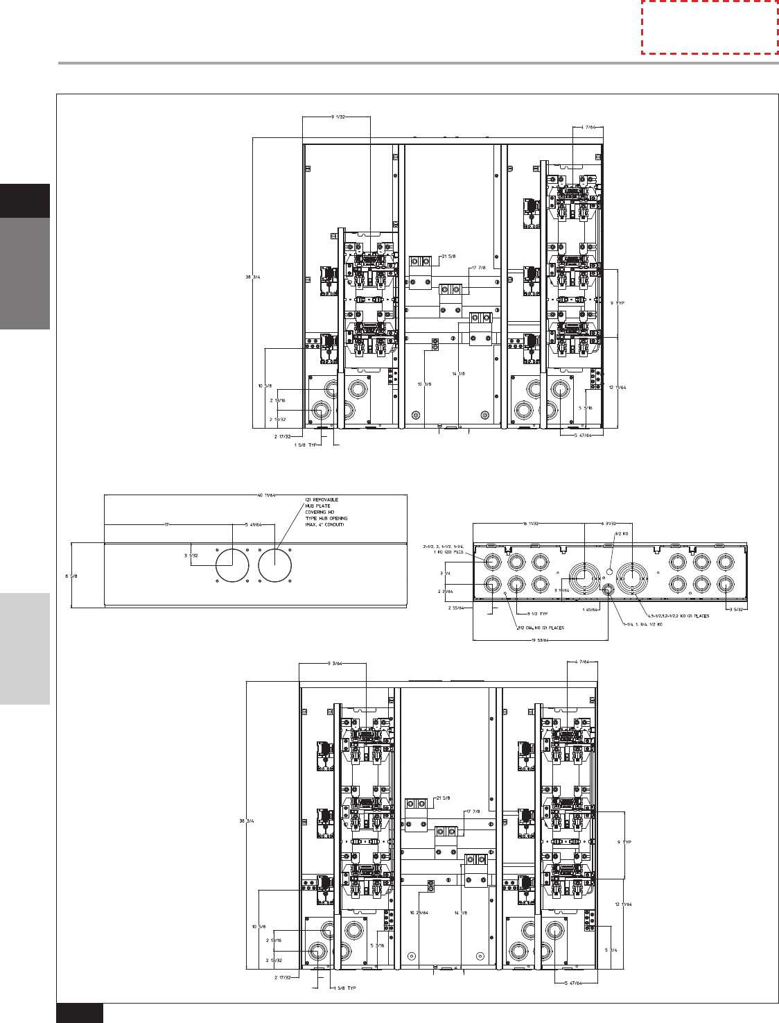
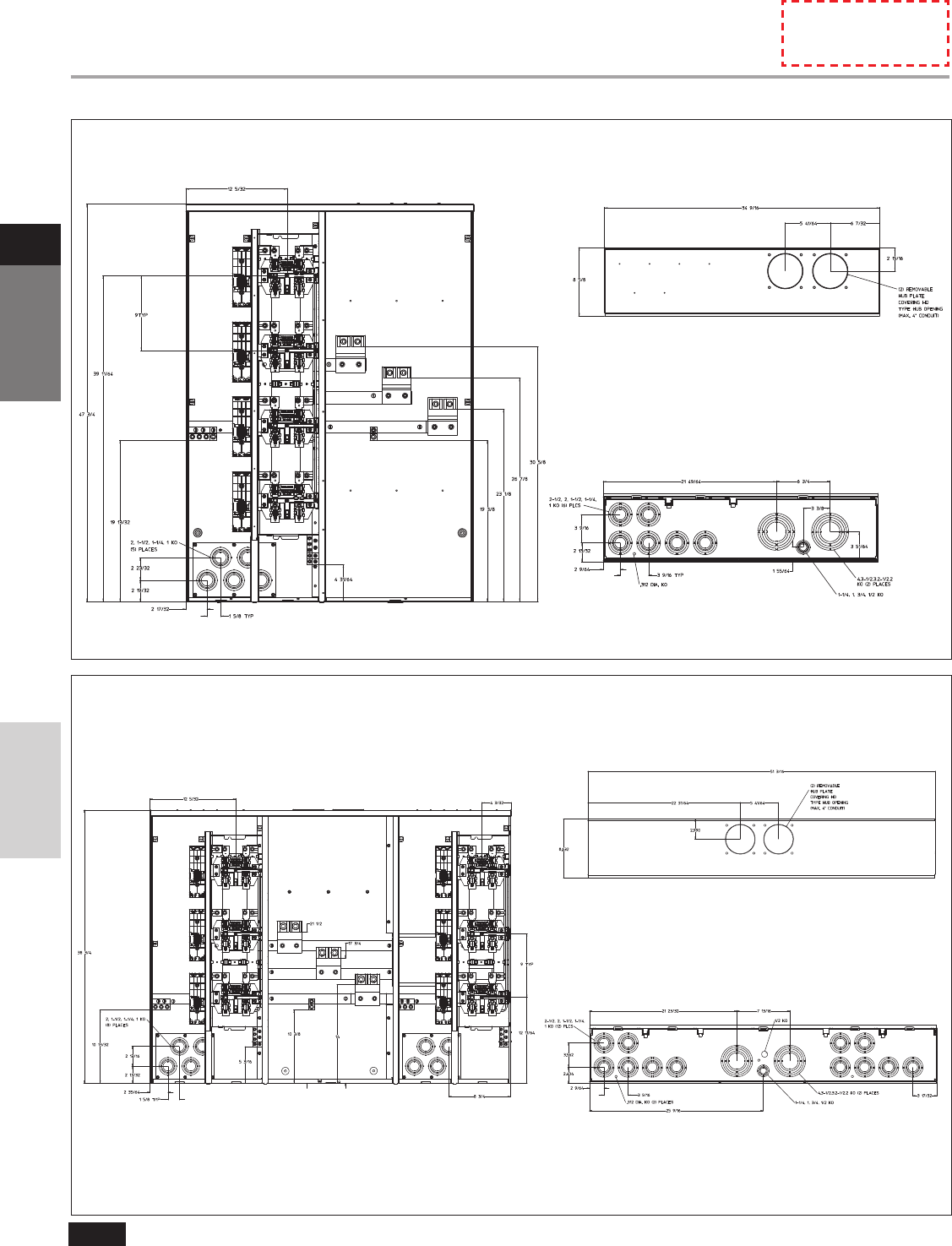
WP4511
WEP4511
WP4411
WEP4411
Bottom view for
WP4511, WP4611, WEP4511 and WEP4611
Top view for
WP4511, WP4611, WEP4511 and WEP4611
• Revised •
12/15/11

2
METER
CENTERS
Siemens Industry, Inc. SPEEDFAX™ 2011 Product Catalog
2-124
Multi-family
Metering
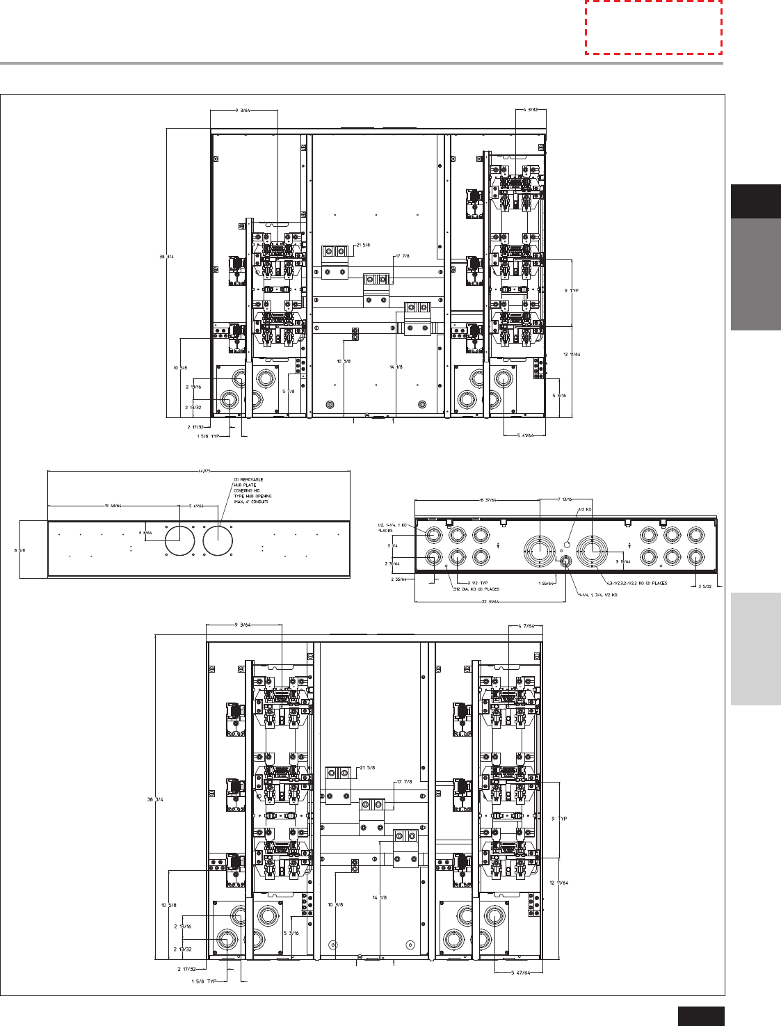
WP6511
WP6611
Bottom view for
WP6511 and WP6611
Top view for WP6511 and WP6611
Meter Centers
Uni-PAK Metering: Dimensional & Knockout Diagrams
• Revised •
12/15/11

2METER
CENTERS
Siemens Industry, Inc. SPEEDFAX™ 2011 Product Catalog 2-125
Multi-family
Metering
WEP6511
WEP6611
Bottom view for
WEP6511 and WEP6611
Top view for WEP6511 and WEP6611
Meter Centers
Uni-PAK Metering: Dimensional & Knockout Diagrams
• Revised •
12/15/11

2
METER
CENTERS
Siemens Industry, Inc. SPEEDFAX™ 2011 Product Catalog
2-126
Multi-family
Metering
WP4212
WEP4212
WP4312
WEP4312
Top view for
WP4212, WEP4212, WP4312 and WEP4312
Bottom view for
WP4212, WEP4212, WP4312 and WEP4312
Meter Centers
Uni-PAK Metering: Dimensional & Knockout Diagrams
• Revised •
12/15/11

2METER
CENTERS
Siemens Industry, Inc. SPEEDFAX™ 2011 Product Catalog 2-127
Multi-family
Metering
WP4412
WEP4412
WP6412
Top view for
WP4412 and WEP4412
Top view for
WP6412
Bottom view for
WP4412 and WEP4412
Bottom view for
WP6412
Meter Centers
Uni-PAK Metering: Dimensional & Knockout Diagrams
• Revised •
12/15/11

2
METER
CENTERS
Siemens Industry, Inc. SPEEDFAX™ 2011 Product Catalog
2-128
Multi-family
Metering
Meter Centers
Uni-PAK Metering: Dimensional & Knockout Diagrams
WEP6412
WP8612
WEP8612
Top view for
WEP6412
Top view for
WP8612 and WEP8612
Bottom view for
WEP6412
Bottom view for
WP8612 and WEP8612
• Revised •
12/15/11

2METER
CENTERS
Siemens Industry, Inc. SPEEDFAX™ 2011 Product Catalog 2-129
Multi-family
Metering
Meter Centers
Uni-PAK Metering: Dimensional & Knockout Diagrams
WP6512
WP6612
Bottom view for
WP6512 and WP6612
Top view for WP6512 and WP6612
• Revised •
12/15/11

2
METER
CENTERS
Siemens Industry, Inc. SPEEDFAX™ 2011 Product Catalog
2-130
Multi-family
Metering
Meter Centers
Uni-PAK Metering: Dimensional & Knockout Diagrams
WEP6512
WEP6612
Bottom view for
WEP6512 and WEP6612
Top view for WEP6512 and WEP6612
• Revised •
12/15/11

2METER
CENTERS
Siemens Industry, Inc. SPEEDFAX™ 2011 Product Catalog 2-131
Multi-family
Metering
Meter Centers
Uni-PAK Metering: Dimensional & Knockout Diagrams
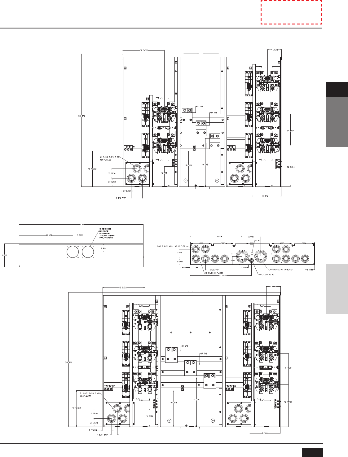
WPL4212
WP10612
WEP10612
Top view for
WPL4212
Top view for
WP10612
Bottom view for
WPL4212
Bottom view for
WP10612
• Revised •
12/15/11

2
METER
CENTERS
Siemens Industry, Inc. SPEEDFAX™ 2011 Product Catalog
2-132
Multi-family
Metering
Meter Centers
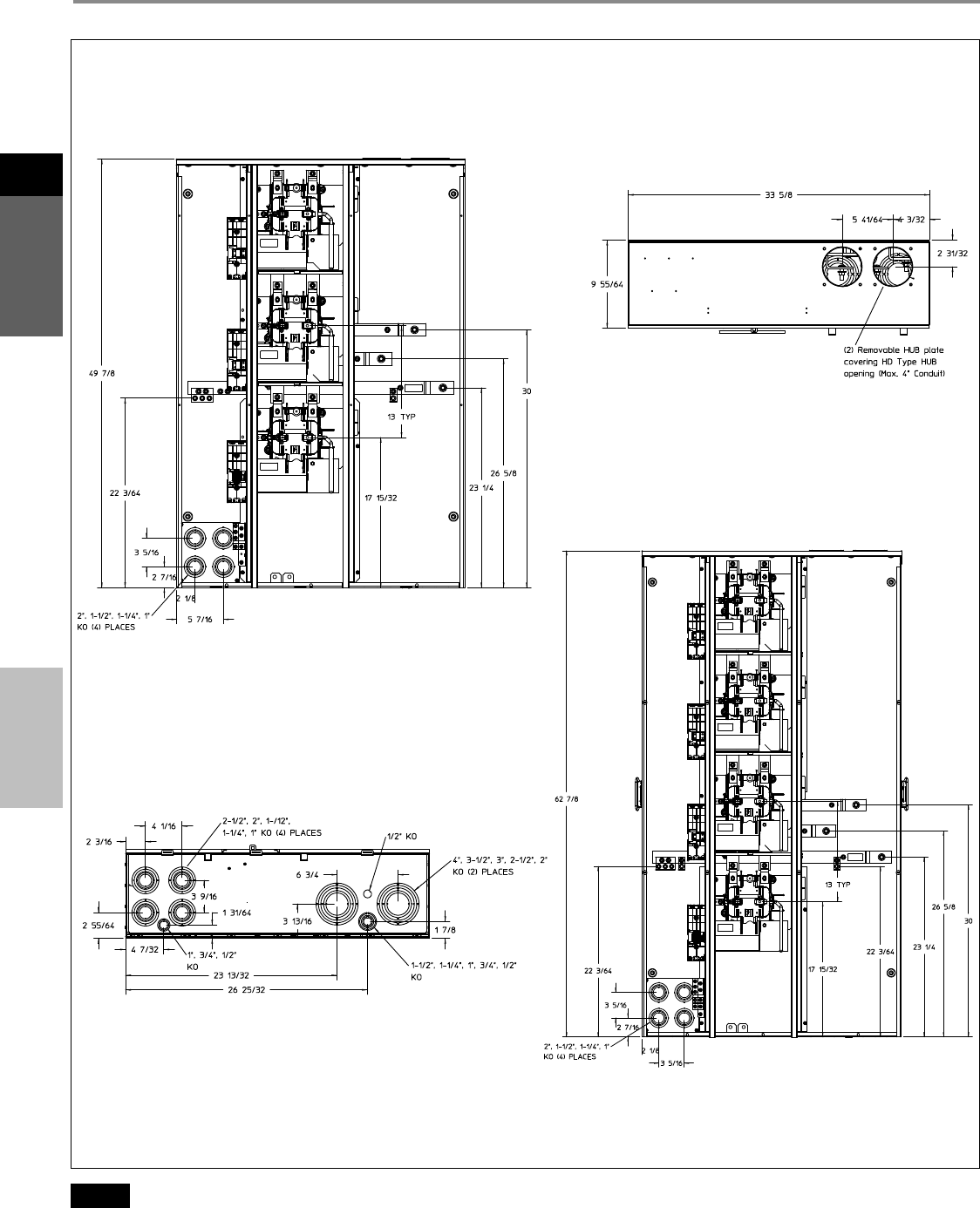
Uni-PAK Metering: Dimensional & Knockout Diagrams
WPL4312
WPL4412
Top view for
WPL4312 and WPL4412
Bottom view for
WPL4312 and WPL4412

2METER
CENTERS
Siemens Industry, Inc. SPEEDFAX™ 2011 Product Catalog 2-133
Multi-family
Metering
Meter Centers
Uni-PAK Metering: Dimensional & Knockout Diagrams
WPL6512
WPL6612
Top view for
WPL6512 and WPL6612
Bottom view for
WPL6512 and WPL6612

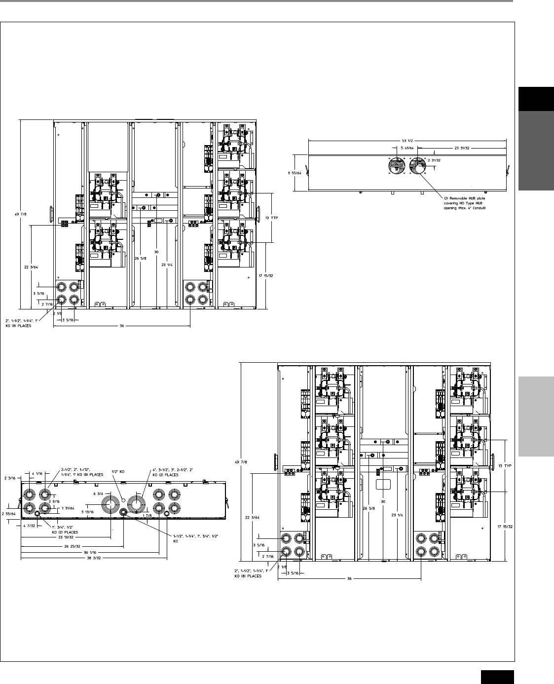
2
METER
CENTERS
Siemens Industry, Inc. SPEEDFAX™ 2011 Product Catalog
2-134
Multi-family
Metering
WPL8612
WPL10612
Top view for
WPL8612 and WPL10612
Bottom view for
WPL8612 and WPL10612
Meter Centers
Uni-PAK Metering: Dimensional & Knockout Diagrams