Product Detail Manual
2014-10-17
: Pdf 101719-Attachment 101719-Attachment 674812 Batch10 unilog
Open the PDF directly: View PDF
.
Page Count: 90

Concrete Products Catalog
September 2009

Copyright © 2009 by Oldcastle Precast Inc. 1
Utility and Valve Boxes .............................3
Electrical and Telephone Boxes .....................21
Traffic Utility Boxes & Traffic Valve Boxes .............35
Drainage Boxes ..................................45
Washington Department of Transportation (WDOT) ......51
Maricopa Association of Governments (MAG) ..........53
Pits, Vaults, & Catch Basins ........................57
Fibrelyte Boxes ..................................73
Miscellaneous ...................................79
Cross Reference Guide ............................85
Installation Procedures ............... Inside Back Cover
Table of Contents

Back to Table of Contents
Copyright © 2009 by Oldcastle Precast Inc. 3
UTILITY BOX
No. B03BOX
74 lbs.
REINFORCED CONCRETE LID
No. B03D
12 lbs.
B03C
B03P
B03Z
3
3
OP
B03-61D
www.oldcastleprecast.com
©
B03 BOX B03 UTILITY BOX
9-3/4" x 15-5/8"
Oldcastle Precast ®
Enclosure Solutions
Copyright 2009
Oldcastle Precast Inc.
Utility and
Valve Boxes

Back to Table of Contents
4 Copyright © 2009 by Oldcastle Precast Inc.
UTILITY BOX
No. B09BOX
90 lbs.
Reinforced Concrete Lid
No. B09D
20 lbs.
B09G
FL09D
B09G
B09C
B09P
B09-61D
B09-61G
9
9
OP
OP
9
Oldca stle
www.oldcastleprecast.com
Oldcastle Precast ®
Enclosure Solutions
B09 BOX B09 UTILITY BOX
10-1/4" x 16-3/4"
©
Copyright 2009
Oldcastle Precast Inc.

Back to Table of Contents
Copyright © 2009 by Oldcastle Precast Inc. 5
UTILITY BOX
No. B09XBOX
90 lbs.
REINFORCED CONCRETE LID
No. B09XD
20 lbs.
B09XG
FL09X
B09XC
B09-61D B09-61G
9
9
OP
OP
9
Oldcastle
www.oldcastleprecast.com
Oldcastle Precast ®
Enclosure Solutions
B09X BOX B09X UTILITY BOX
10-1/4" x 16-3/4"
©
Copyright 2009
Oldcastle Precast Inc.
Utility and
Valve Boxes

Back to Table of Contents
6 Copyright © 2009 by Oldcastle Precast Inc.
UTILITY BOX
No. B12BOX
96 lbs.
REINFORCED CONCRETE LID
No. B12D
28 lbs.
12
12
OP
12
OP
B12G B12P
B12C
B12S
B12-61D B12-61G
www.oldcastleprecast.com
Oldcastle Precast ®
Enclosure Solutions
B12 BOX B12 UTILITY BOX
12" x 20"
©
Copyright 2009
Oldcastle Precast Inc.

Back to Table of Contents
Copyright © 2009 by Oldcastle Precast Inc. 7
UTILITY BOX
No. B16BOX
112 lbs.
REINFORCED CONCRETE LID
No. B16D
30 lbs.
B16-61D
B16C
FL16D B16-61G
OP
16
B16P
B16G
OP
16
www.oldcastleprecast.com
Oldcastle Precast ®
Enclosure Solutions
B16 BOX B16 UTILITY BOX
11-3/4" x 22-1/4"
©
Copyright 2009
Oldcastle Precast Inc.
Utility and
Valve Boxes

Back to Table of Contents
8 Copyright © 2009 by Oldcastle Precast Inc.
DUAL METER BOX
No. B24BOX
126 lbs.
REINFORCED CONCRETE LID
No. B24D
52 lbs.
B24E B24G
B24-61D
OP
B24-61G
24
24
OP
24
B24 BOX B24 DUAL METER BOX
20-3/4" x 19-1/4"
Oldcastle Precast ®
Enclosure Solutions
www.oldcastleprecast.com
©
Copyright 2009
Oldcastle Precast Inc.

Back to Table of Contents
Copyright © 2009 by Oldcastle Precast Inc. 9
B26GV
B26-61G B26-61D
UTILITY BOX
No. B26BOX
O P
O P
www.oldcastleprecast.com
Oldcastle Precast ®
Enclosure Solutions
B26 BOX B26 SECTIONAL
UTILITY BOX
Copyright 2009
Oldcastle Precast Inc.
©
Utility and
Valve Boxes

Back to Table of Contents
10 Copyright © 2009 by Oldcastle Precast Inc.
UTILITY BOX
No. B30BOX
138 lbs.
REINFORCED CONCRETE LID
No. B30D
44 lbs.
B30-61GB30-61D
FL30D
www.oldcastleprecast.com
Oldcastle Precast ®
Enclosure Solutions
B30 BOX B30 UTILITY BOX
13-1/4" x 24-1/4"
©
Copyright 2009
Oldcastle Precast Inc.

Back to Table of Contents
Copyright © 2009 by Oldcastle Precast Inc. 11
UTILITY BOX
No. B36BOX
172 lbs.
REINFORCED CONCRETE LID
No. B36D
76 lbs.
B36-61D B36-61G
www.oldcastleprecast.com
Oldcastle Precast ®
Enclosure Solutions
B36 BOX B36 UTILITY BOX
17-1/8" x 30-1/4"
©
Copyright 2009
Oldcastle Precast Inc.
Utility and
Valve Boxes

Back to Table of Contents
12 Copyright © 2009 by Oldcastle Precast Inc.
REINFORCED CONCRETE LID
No. B40D
196 lbs.
UTILITY BOX
No. B40 BOX
268 lbs.
B40-61D
B40M
OP
40
B40-61G
OP
40
www.oldcastleprecast.com
Oldcastle Precast ®
Enclosure Solutions
B40 BOX B40 UTILITY BOX
24-1/2" x 36"
©
Copyright 2009
Oldcastle Precast Inc.

Back to Table of Contents
Copyright © 2009 by Oldcastle Precast Inc. 13
REINFORCED CONCRETE LID
No. B44D2
188 lbs.
B44E2
44
OP
44
O P
B44-62D B44-62G
UTILITY BOX
No. B44BOX
290 lbs.
44
OP
44
O P
www.oldcastleprecast.com
Oldcastle Precast ®
Enclosure Solutions
B44 BOX B44 UTILITY BOX
20-1/4" x 42-1/4"
©
Copyright 2009
Oldcastle Precast Inc.
Utility and
Valve Boxes

Back to Table of Contents
14 Copyright © 2009 by Oldcastle Precast Inc.
UTILITY BOX
No. B48BOX
376 lbs.
REINFORCED CONCRETE LID
No. B48D2
396 lbs.
B48-62G
B48M2
48
OP
48
O P
www.oldcastleprecast.com
Oldcastle Precast ®
Enclosure Solutions
B48 BOX B48 UTILITY BOX
30-1/4" x 48-1/4"
©
Copyright 2009
Oldcastle Precast Inc.

Back to Table of Contents
Copyright © 2009 by Oldcastle Precast Inc. 15
UTILITY BOX
No. B52BOX
454 lbs.
B52-62D
B52M3
B52F3
B52-62G
5 2
O P
REINFORCED CONCRETE LID
No. B52D3
532 lbs.
52
OP
5 2
O P
52
OP
www.oldcastleprecast.com
Oldcastle Precast ®
Enclosure Solutions
B52 BOX B52 UTILITY BOX
30" x 60"
©
Copyright 2009
Oldcastle Precast Inc.
Utility and
Valve Boxes

Back to Table of Contents
16 Copyright © 2009 by Oldcastle Precast Inc.
UTILITY BOX
No. B65BOX
160 lbs.
REINFORCED CONCRETE LID
No. B65D
56 lbs.
B65E B65G
65
B65-61G
B65-61D
www.oldcastleprecast.com
Oldcastle Precast ®
Enclosure Solutions
B65 BOX B65 UTILITY BOX
15" x 26-1/2"
©
Copyright 2009
Oldcastle Precast Inc.

Back to Table of Contents
Copyright © 2009 by Oldcastle Precast Inc. 17
F08CFL08D V01-71C
CURB VALVE BOX
No. F01BOX
22 lbs.
REINFORCED CONCRETE LID
No. F08R
8 lbs.
www.oldcastleprecast.com
Oldcastle Precast ®
Enclosure Solutions
F01 BOX (STANDARD) F01 CURB VALVE BOX
8" I.D. x 7-3/4"
©
Copyright 2009
Oldcastle Precast Inc.
Utility and
Valve Boxes

Back to Table of Contents
18 Copyright © 2009 by Oldcastle Precast Inc.
F08CFL08D V01-71C
CURB VALVE BOX
No. F08BOX
34 lbs.
REINFORCED CONCRETE LID
No. F08R
8 lbs.
www.oldcastleprecast.com
Oldcastle Precast ®
Enclosure Solutions
F08 BOX (STANDARD) F08 CURB VALVE BOX
8" I.D. x 11-3/4"
©
Copyright 2009
Oldcastle Precast Inc.

Back to Table of Contents
Copyright © 2009 by Oldcastle Precast Inc. 19
F08C
FL08D
CURB VALVE BOX
No. F14BOX
34 lbs.
REINFORCED CONCRETE LID
No. F08R
8 lbs.
www.oldcastleprecast.com
Oldcastle Precast ®
Enclosure Solutions
F14 BOX (STANDARD) F14 CURB VALVE BOX
8" I.D. x 18"
©
Copyright 2009
Oldcastle Precast Inc.
Utility and
Valve Boxes

Back to Table of Contents
20 Copyright © 2009 by Oldcastle Precast Inc.
CURB VALVE BOX
No. F22BOX
34 lbs.
F08CFL08D
REINFORCED CONCRETE LID
No. F08R
8 lbs.
www.oldcastleprecast.com
Oldcastle Precast ®
Enclosure Solutions
F22 BOX (STANDARD) F22 CURB VALVE BOX
8" I.D. x 30"
©
Copyright 2009
Oldcastle Precast Inc.

Back to Table of Contents
Copyright © 2009 by Oldcastle Precast Inc. 21
ELECTRICAL BOX
No. N09BOX
90 lbs.
REINFORCED CONCRETE LID
NO. N09T
20 lbs.
N09J
N09-61J
FL09T
N09D
9
OP
www.oldcastleprecast.com
Oldcastle Precast ®
Enclosure Solutions
N09 BOX N09 ELECTRICAL BOX
10-1/4" x 16-3/4"
©
Copyright 2009
Oldcastle Precast Inc.
Electrical &
Telephone
Boxes

Back to Table of Contents
22 Copyright © 2009 by Oldcastle Precast Inc.
ELECTRICAL BOX
No. N16BOX
112 lbs.
REINFORCED CONCRETE LID
No. N16D
30 lbs.
N16-61J
N16T N16J
FL16T
16
OP
www.oldcastleprecast.com
Oldcastle Precast ®
Enclosure Solutions
N16 BOX N16 ELECTRICAL BOX
11-3/4" x 22-1/4"
©
Copyright 2009
Oldcastle Precast Inc.

Back to Table of Contents
Copyright © 2009 by Oldcastle Precast Inc. 23
ELECTRICAL BOX
No. N30BOX
138 lbs.
N30T
FL30T
B30-61DN30-61J
FL30D
REINFORCED CONCRETE LID
No. B30D
44 lbs.
www.oldcastleprecast.com
Oldcastle Precast ®
Enclosure Solutions
N30 BOX N30 ELECTRICAL BOX
13-1/4" x 24-1/4"
©
Copyright 2009
Oldcastle Precast Inc.
Electrical &
Telephone
Boxes

Back to Table of Contents
24 Copyright © 2009 by Oldcastle Precast Inc.
ELECTRICAL BOX
No. N36BOX
172 lbs.
REINFORCED CONCRETE LID
NO. B36D
76 LBS.
N36-61JN36T
FL36T
www.oldcastleprecast.com
Oldcastle Precast ®
Enclosure Solutions
N36 BOX N36 ELECTRICAL BOX
17-1/8" x 30-1/4"
©
Copyright 2009
Oldcastle Precast Inc.

Back to Table of Contents
Copyright © 2009 by Oldcastle Precast Inc. 25
REINFORCED CONCRETE LID
No. B40D
196 lbs.
ELECTRICAL BOX
No. N40 BOX
268 lbs.
N40T N40-61J
40
OP
www.oldcastleprecast.com
Oldcastle Precast ®
Enclosure Solutions
N40 BOX N40 ELECTRICAL BOX
24-1/2" x 36"
"T" BOX
©
Copyright 2009
Oldcastle Precast Inc.
Electrical &
Telephone
Boxes

Back to Table of Contents
26 Copyright © 2009 by Oldcastle Precast Inc.
B44-62D
ELECTRICAL BOX
No. N44BOX
290 lbs.
REINFORCED CONCRETE LID
No. N44D2
188 lbs.
44
OP
OP
44
www.oldcastleprecast.com
Oldcastle Precast ®
Enclosure Solutions
N44 BOX N44 ELECTRICAL BOX
20-1/4" x 42-1/4"
©
Copyright 2009
Oldcastle Precast Inc.

Back to Table of Contents
Copyright © 2009 by Oldcastle Precast Inc. 27
ELECTICAL BOX
No. N48BOX
376 lbs.
REINFORCED CONCRETE LID
No. N48D2
396 lbs.
B48-62J
N48T2
B48-62D
48
O P
48
O P
48
O P
48
O P
www.oldcastleprecast.com
Oldcastle Precast ®
Enclosure Solutions
N48 BOX N48 ELECTRICAL BOX
30-1/4" x 48-1/4"
"T" BOX
©
Copyright 2009
Oldcastle Precast Inc.
Electrical &
Telephone
Boxes

Back to Table of Contents
28 Copyright © 2009 by Oldcastle Precast Inc.
ELECTRICAL BOX
No. N52BOX
454 lbs.
REINFORCED CONCRETE LID
No.N52D3
532 lbs.
B52-62D
5 2
O P
N52T3
N52-62J
5 2
O P
5 2
O P
5 2
O P
www.oldcastleprecast.com
Oldcastle Precast ®
Enclosure Solutions
N52 BOX N52 ELECTRICAL BOX
30" x 60"
"T" BOX
©
Copyright 2009
Oldcastle Precast Inc.

Back to Table of Contents
Copyright © 2009 by Oldcastle Precast Inc. 29
TELEPHONE BOX
No. P09BOX
90 lbs.
REINFORCED CONCRETE LID
No. N09D
20 lbs.
9
OP
B9-61D N9-61J
FL9D
9
OP
9
www.oldcastleprecast.com
Oldcastle Precast ®
Enclosure Solutions
P09 BOX P09 TELEPHONE BOX
10-1/4" X 16-3/4"
©
Copyright 2009
Oldcastle Precast Inc.
Electrical &
Telephone
Boxes

Back to Table of Contents
30 Copyright © 2009 by Oldcastle Precast Inc.
TELEPHONE BOX
No. P36BOX
172 lbs.
REINFORCED CONCRETE LID
No. B36D
76 lbs.
N36-61JB36-61D
FL36D
www.oldcastleprecast.com
Oldcastle Precast ®
Enclosure Solutions
P36 BOX P36 TELEPHONE BOX
17-1/8" X 30-1/4"
©
Copyright 2009
Oldcastle Precast Inc.

Back to Table of Contents
Copyright © 2009 by Oldcastle Precast Inc. 31
B44-62D
TELEPHONE BOX
No. P44BOX
290 lbs.
REINFORCED CONCRETE LID
No. P44D2
188 lbs.
44
OP
OP
44
www.oldcastleprecast.com
Oldcastle Precast ®
Enclosure Solutions
P44 BOX P44 TELEPHONE BOX
20-1/4" x 42-1/4"
©
Copyright 2009
Oldcastle Precast Inc.
Electrical &
Telephone
Boxes

Back to Table of Contents
32 Copyright © 2009 by Oldcastle Precast Inc.
TELEPHONE BOX
No. P48BOX
376 lbs.
REINFORCED CONCRETE LID
No. P48D2
396 lbs.
N48-62J
B48-62D
48
OP
48
O P
48
OP
48
O P
www.oldcastleprecast.com
Oldcastle Precast ®
Enclosure Solutions
P48 BOX P48 TELEPHONE BOX
30-1/4" x 48-1/4"
"T" BOX
©
Copyright 2009
Oldcastle Precast Inc.

Back to Table of Contents
Copyright © 2009 by Oldcastle Precast Inc. 33
TELEPHONE BOX
No. P52BOX
454 lbs.
REINFORCED CONCRETE LID
No. P52D3
532 lbs.
B52-62D
52
OP
N52-62J
5 2
O P
52
OP
5 2
O P
www.oldcastleprecast.com
Oldcastle Precast ®
Enclosure Solutions
P52 BOX P52 TELEPHONE BOX
30" x 60"
"T" BOX
©
Copyright 2009
Oldcastle Precast Inc.
Electrical &
Telephone
Boxes

Back to Table of Contents
Copyright © 2009 by Oldcastle Precast Inc. 35
STEEL CHECKER COVER
No. B1017-51JH
44 lbs.
B1017-51GH
TRAFFIC BOX
No. B1017BOX
130 lbs.
OP
www.oldcastleprecast.com
Oldcastle Precast ®
Enclosure Solutions
B1017 BOX B1017 BOX H/20 LOADING
10-5/8" x 17-1/4"
Traffic Box
Caltrans No. 3-1/2T State Specs
©
Copyright 2009
Oldcastle Precast Inc.
Traffic Utility
Boxes & Traffic
Valve Boxes

Back to Table of Contents
36 Copyright © 2009 by Oldcastle Precast Inc.
STEEL CHECKER COVER
No. B1324-51JH
70 lbs.
B1324-51GH
TRAFFIC BOX
No. B1324BOX
166 lbs.
OP
www.oldcastleprecast.com
Oldcastle Precast ®
Enclosure Solutions
B1324 BOX B1324 BOX H/20 LOADING
13-1/4" x 24"
Traffic Box
Caltrans No. 5T State Specs
©
Copyright 2009
Oldcastle Precast Inc.

Back to Table of Contents
Copyright © 2009 by Oldcastle Precast Inc. 37
STEEL CHECKER COVER
No. B1730-51JH
111 lbs.
B1730-51GH
TRAFFIC BOX
No. B1730BOX
268 lbs.
O P
www.oldcastleprecast.com
Oldcastle Precast ®
Enclosure Solutions
B1730 BOX B1730 BOX H/20 LOADING
17" x 30"
Traffic Box
Caltrans No. 6T State Specs
©
Copyright 2009
Oldcastle Precast Inc.
Traffic Utility
Boxes & Traffic
Valve Boxes

Back to Table of Contents
38 Copyright © 2009 by Oldcastle Precast Inc.
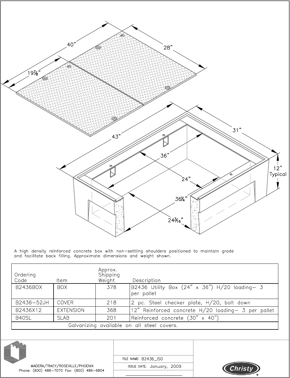
STEEL CHECKER COVER
No. B2436-52JH
218 lbs.
TRAFFIC BOX
No. B2436BOX
378 lbs.
www.oldcastleprecast.com
Oldcastle Precast ®
Enclosure Solutions
B2436 BOX B2436 BOX H/20 LOADING
24" x 36"
©
Copyright 2009
Oldcastle Precast Inc.

Back to Table of Contents
Copyright © 2009 by Oldcastle Precast Inc. 39
STEEL CHECKER COVER
No. B3048-53JH
300 lbs.
UTILITY BOX
No. B3048 BOX
434 lbs.
www.oldcastleprecast.com
Oldcastle Precast ®
Enclosure Solutions
B3048 BOX B3048 BOX H/20 LOADING
30-1/4" x 48-1/4"
©
Copyright 2009
Oldcastle Precast Inc.
Traffic Utility
Boxes & Traffic
Valve Boxes

Back to Table of Contents
40 Copyright © 2009 by Oldcastle Precast Inc.
CAST IRON LID
No. G03C
14 lbs.
TRAFFIC VALVE BOX
No. GO3BOX
72 lbs.
www.oldcastleprecast.com
Oldcastle Precast ®
Enclosure Solutions
G03 BOX G03 TRAFFIC VALVE BOX
10-1/4" I.D. x 12"
©
Copyright 2009
Oldcastle Precast Inc.

Back to Table of Contents
Copyright © 2009 by Oldcastle Precast Inc. 41
CAST IRON LID
No. G04C
16 lbs.
TRAFFIC VALVE BOX
No. G04BOX
60 lbs.
www.oldcastleprecast.com
Oldcastle Precast ®
Enclosure Solutions
G04 BOX G04 TRAFFIC VALVE BOX
10" I.D. x 12"
©
Copyright 2009
Oldcastle Precast Inc.
Traffic Utility
Boxes & Traffic
Valve Boxes

Back to Table of Contents
42 Copyright © 2009 by Oldcastle Precast Inc.
TRAFFIC VALVE BOX
No. G05TBOX
58 lbs.
Locking
Grade Ring
CAST IRON BOLT DOWN LID
No. G05CT
14 lbs.
www.oldcastleprecast.com
Oldcastle Precast ®
Enclosure Solutions
G05 BOX G05 TRAFFIC VALVE BOX
10-3/8" I.D. x 12"
©
Copyright 2009
Oldcastle Precast Inc.

Back to Table of Contents
Copyright © 2009 by Oldcastle Precast Inc. 43
CAST IRON LID
No. G05C
14 lbs.
TRAFFIC VALVE BOX
No. G08BOX
90 lbs.
Locking
Grade Ring
www.oldcastleprecast.com
Oldcastle Precast ®
Enclosure Solutions
G08 BOX G08 TRAFFIC VALVE BOX
13" I.D. x 12"
©
Copyright 2009
Oldcastle Precast Inc.
Traffic Utility
Boxes & Traffic
Valve Boxes

Back to Table of Contents
44 Copyright © 2009 by Oldcastle Precast Inc.
CAST IRON LID
No. G12C
24 lbs.
TRAFFIC VALVE BOX
No. G12BOX
106 lbs.
www.oldcastleprecast.com
Oldcastle Precast ®
Enclosure Solutions
G12 BOX G12 TRAFFIC VALVE BOX
14-1/2" I.D. x 12"
©
Copyright 2009
Oldcastle Precast Inc.

Back to Table of Contents
Copyright © 2009 by Oldcastle Precast Inc. 45
DRAIN BOX
No. V01BOX
34 lbs.
REINFORCED CONCRETE LID
No. F08R
8 lbs.
F08C V01-71C
V01 BOX (STANDARD) V01 DRAIN BOX
8" I.D. x 12
www.oldcastleprecast.com
Oldcastle Precast ®
Enclosure Solutions
©
Copyright 2009
Oldcastle Precast Inc.
Drainage
Items

Back to Table of Contents
46 Copyright © 2009 by Oldcastle Precast Inc.
DRAIN BOX
No. V09BOX
90 lbs.
CAST IRON GRATE
No. V09-71C
30 lbs.
9
V09 BOX V09 DRAIN BOX
10-1/4" x 16-3/4"
www.oldcastleprecast.com
Oldcastle Precast ®
Enclosure Solutions
©
Copyright 2009
Oldcastle Precast Inc.

Back to Table of Contents
Copyright © 2009 by Oldcastle Precast Inc. 47
WELDED GRATE
No. V12-71W
34 lbs
DRAIN BOX
No. V12BOX
177 lbs.
V12 DRAIN BOX V12 DRAIN BOX
12" x 12"
www.oldcastleprecast.com
Oldcastle Precast ®
Enclosure Solutions
©
Copyright 2009
Oldcastle Precast Inc.
Drainage
Items

Back to Table of Contents
48 Copyright © 2009 by Oldcastle Precast Inc.
DRAIN BOX
No. V24BOX
126 lbs.
CAST IRON GRATE
No. V24-71C
60 lbs.
24
V24 DRAIN BOX V24 DRAIN BOX
20-3/4" x 19-1/4"
www.oldcastleprecast.com
Oldcastle Precast ®
Enclosure Solutions
©
Copyright 2009
Oldcastle Precast Inc.

Back to Table of Contents
Copyright © 2009 by Oldcastle Precast Inc. 49
CAST IRON GRATE
No. V64-71C
32 lbs.
DRAIN BOX
No. V64BOX
194 lbs.
V64 DRAIN BOX V64 DRAIN BOX
18-3/8" x 18-3/8"
www.oldcastleprecast.com
Oldcastle Precast ®
Enclosure Solutions
©
Copyright 2009
Oldcastle Precast Inc.
Drainage
Items

Back to Table of Contents
Copyright © 2009 by Oldcastle Precast Inc. 51
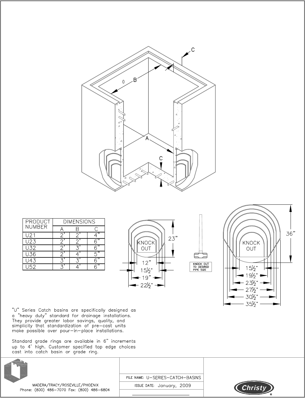
Type 6
Box
Wt. 1585 lbs.
Cover
Wt. 510 lbs.
Type 5
Box
Wt. 1270 lbs.
Cover
Wt. 271 lbs.
Type 4
Box
Wt. 956 lbs.
Cover
Wt. 162 lbs.
WDOT JB4 - 14x19
WDOT JB5 - 17x28
Oldcastle Precast ®
Enclosure Solutions
www.oldcastleprecast.com
Copyright 2009
Oldcastle Precast Inc.
©
WDOT J-BOXES - HD
WDOT J-BOXES - HEAVY DUTY
WDOT JB6 - 24x36
Washington
Dept of
Transportation

Back to Table of Contents
52 Copyright © 2009 by Oldcastle Precast Inc.
Type 7/8
Wt. 345 lbs.
Type 7/8 Cover -
Dual Hinged Door
Box Footing
Wt. 415 lbs
Type 2
Wt. 46 lbs.
Box Cover
Wt. 202 lbs
Type 1
Wt. 22 lbs.
Box Cover
Wt. 142 lbs
Oldcastle Precast ®
Enclosure Solutions
www.oldcastleprecast.com
Copyright 2009
Oldcastle Precast Inc.
©
WDOT J-BOXES - STD
•
•
•
WDOT JB1 - 14x19
WDOT JB2 - 17x28
WDOT JB7/8 - 24x36
WDOT J-BOXES - STANDARD

Back to Table of Contents
Copyright © 2009 by Oldcastle Precast Inc. 53
DIAMOND PLATE
STEEL
DIAMOND PLATE
STEEL WITH
TOUCH READ
POLYMER WITH
TOUCH READ
OR I-TRON SLOT
CAST IRON
MAG SPEC 320
CONCRETE METER BOXES
Oldcastle Precast ®
Enclosure Solutions
www.oldcastleprecast.com
Copyright 2009
Oldcastle Precast Inc.
©
MAG SPEC 320
CONTRACTORS /
Maricopa
Association of
Government

Back to Table of Contents
54 Copyright © 2009 by Oldcastle Precast Inc.
STEEL WATER METER
BOX COVERS W/ WELDED
Oldcastle Precast ®
Enclosure Solutions
www.oldcastleprecast.com
Copyright 2009
Oldcastle Precast Inc.
©
STEEL COVERS
W/ WELDED CORNERS
CONTRACTORS /

Back to Table of Contents
Copyright © 2009 by Oldcastle Precast Inc. 55
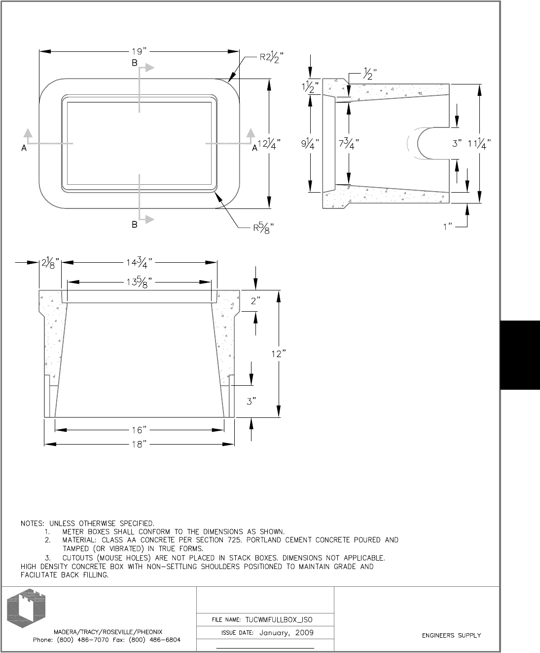
PLAN VIEW
SECTION A-A
SECTION B-B
TUCSON CONCRETE
WATER METER BOX
Oldcastle Precast ®
Enclosure Solutions
www.oldcastleprecast.com
Copyright 2009
Oldcastle Precast Inc.
©
FULL METER BOX
CONTRACTORS /
Maricopa
Association of
Government

Back to Table of Contents
56 Copyright © 2009 by Oldcastle Precast Inc.
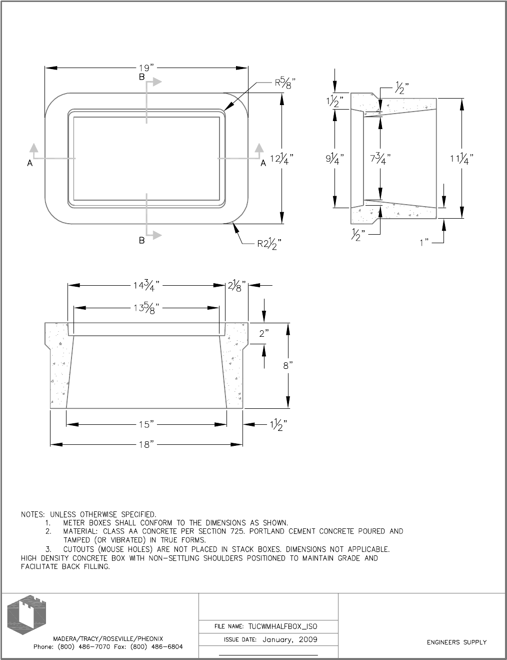
PLAN VIEW SECTION B-B
SECTION A-A
TUCSON CONCRETE
WATER METER BOX
Oldcastle Precast ®
Enclosure Solutions
www.oldcastleprecast.com
Copyright 2009
Oldcastle Precast Inc.
©
HALF METER BOX
CONTRACTORS /

Back to Table of Contents
Copyright © 2009 by Oldcastle Precast Inc. 57
R-10
SPRING
ASSIST
www.oldcastleprecast.com
Oldcastle Precast ®
Enclosure Solutions
"R" SERIES PITS "R" SERIES PITS
"R" SERIES PITS
©
Copyright 2009
Oldcastle Precast Inc.
PITS, Vaults, &
Catch Basins

Back to Table of Contents
58 Copyright © 2009 by Oldcastle Precast Inc.

Back to Table of Contents
Copyright © 2009 by Oldcastle Precast Inc. 59
•
•
•
www.oldcastleprecast.com
Oldcastle Precast ®
Enclosure Solutions
"T" SERIES "T" SERIES
ELECTRICAL VAULTS
"T" SERIES ELECTRICAL VAULTS
©
Copyright 2009
Oldcastle Precast Inc.
PITS, Vaults, &
Catch Basins

Back to Table of Contents
60 Copyright © 2009 by Oldcastle Precast Inc.

Back to Table of Contents
Copyright © 2009 by Oldcastle Precast Inc. 61
T95-52JH
GRADE RING
No. T95GR6VF
430 lbs.
ELECTRICAL VAULT
No. T95V-NF
3245 lbs.
STEEL COVER
No. T95-52J
350 lbs.
www.oldcastleprecast.com
Oldcastle Precast ®
Enclosure Solutions
T95 VAULT T95 ELECTRICAL VAULT
3' X 5'
T95 ELECTRICAL VAULT
©
Copyright 2009
Oldcastle Precast Inc.
PITS, Vaults, &
Catch Basins

Back to Table of Contents
62 Copyright © 2009 by Oldcastle Precast Inc.
Oldcastle Precast ®
Enclosure Solutions
©
Copyright 2009
Oldcastle Precast Inc.
U SERIES
www.christyconcrete.com
"U" SERIES
CATCH BASINS
CATCH BASINS

Back to Table of Contents
Copyright © 2009 by Oldcastle Precast Inc. 63
CATCH BASIN
U21 BOX
•
•
•
•
•
•
www.oldcastleprecast.com
Oldcastle Precast ®
Enclosure Solutions
U21 CATCH BASIN U21 CATCH BASIN
2' x 2' W/ 4" WALLS
U21 CATCH BASIN
©
Copyright 2009
Oldcastle Precast Inc.
PITS, Vaults, &
Catch Basins

Back to Table of Contents
64 Copyright © 2009 by Oldcastle Precast Inc.
www.oldcastleprecast.com
Oldcastle Precast ®
Enclosure Solutions
U21S SECTIONAL U21S SECTIONAL
CATCH BASIN
CATCH BASIN
U21 SECTIONAL
©
Copyright 2009
Oldcastle Precast Inc.

Back to Table of Contents
Copyright © 2009 by Oldcastle Precast Inc. 65
CATCH BASIN
U23 BOX
•
•
•
•
•
•
www.oldcastleprecast.com
Oldcastle Precast ®
Enclosure Solutions
U23 CATCH BASIN U23 CATCH BASIN
2' x 2' W/ 6" WALLS
U23 CATCH BASIN
©
Copyright 2009
Oldcastle Precast Inc.
PITS, Vaults, &
Catch Basins

Back to Table of Contents
66 Copyright © 2009 by Oldcastle Precast Inc.
CATCH BASIN
U32 BOX
•
•
•
•
•
•
www.oldcastleprecast.com
Oldcastle Precast ®
Enclosure Solutions
U32 CATCH BASIN U32 CATCH BASIN
2' x 3' W/ 6" WALLS
U32 CATCH BASIN
©
Copyright 2009
Oldcastle Precast Inc.

Back to Table of Contents
Copyright © 2009 by Oldcastle Precast Inc. 67
CATCH BASIN
U36 BOX
•
•
•
•
•
•
U36 CATCH BASIN U36 CATCH BASIN
2' x 4' W/ 5" WALLS
U36 CATCH BASIN
www.oldcastleprecast.com
Oldcastle Precast ®
Enclosure Solutions
©
Copyright 2009
Oldcastle Precast Inc.
PITS, Vaults, &
Catch Basins

Back to Table of Contents
68 Copyright © 2009 by Oldcastle Precast Inc.
CATCH BASIN
U43 BOX
•
•
•
•
•
•
U43 CATCH BASIN U43 CATCH BASIN
3' x 3' w/ 6" WALLS
U43 CATCH BASIN
www.oldcastleprecast.com
Oldcastle Precast ®
Enclosure Solutions
©
Copyright 2009
Oldcastle Precast Inc.

Back to Table of Contents
Copyright © 2009 by Oldcastle Precast Inc. 69
CATCH BASIN
U52 BOX
•
•
•
•
•
•
U52 CATCH BASIN U52 CATCH BASIN
3' x 4' W/ 6" WALLS
U52 CATCH BASIN
www.oldcastleprecast.com
Oldcastle Precast ®
Enclosure Solutions
©
Copyright 2009
Oldcastle Precast Inc.
PITS, Vaults, &
Catch Basins

Back to Table of Contents
70 Copyright © 2009 by Oldcastle Precast Inc.
H-20 Traffic Loading
Light Duty
Welded Steel Grates with Cross Bars
77% Open Flow Area
www.oldcastleprecast.com
Oldcastle Precast ®
Enclosure Solutions
STEEL GRATES WELDED STEEL GRATES
©
Copyright 2009
Oldcastle Precast Inc.

Back to Table of Contents
Copyright © 2009 by Oldcastle Precast Inc. 71
U37 CURB INLET
w/ 5" WALLS
U37 CURB INLET U37 CURB INLET
2' x 4' x 15" DEEP
www.oldcastleprecast.com
Oldcastle Precast ®
Enclosure Solutions
©
Copyright 2009
Oldcastle Precast Inc.
PITS, Vaults, &
Catch Basins

Back to Table of Contents
72 Copyright © 2009 by Oldcastle Precast Inc.
CURB INLET
U37-FC BOX
U37-FC CURB INLET U37-FC CURB INLET
2' x 4' x 15" DEEP
U37-FC CURB INLET
w/ 5" WALLS
www.oldcastleprecast.com
Oldcastle Precast ®
Enclosure Solutions
©
Copyright 2009
Oldcastle Precast Inc.

Back to Table of Contents
Copyright © 2009 by Oldcastle Precast Inc. 73
FIBRELYTE LID
No. FL8D
2 lbs.
FL8T LID
FIBRELYTE BOX
No. FL08TBOX
6 lbs.
FL08 FIBRELYTE BOX
9" x 12"
www.oldcastleprecast.com
Oldcastle Precast ®
Enclosure Solutions
FL08T BOX
FIBRELYTE
©
Copyright 2009
Oldcastle Precast Inc.
®
Fibrelyte
Boxes

Back to Table of Contents
74 Copyright © 2009 by Oldcastle Precast Inc.
FL09D
B09C
SYN09T
FIBRELYTE BOX
No. FL09TBOX
16 lbs.
FIBRELYTE LID
No. FL09T
9 lbs.
Oldcastle
FL09T BOX FL09 FIBRELYTE BOX
10" x 17"
www.oldcastleprecast.com
Oldcastle Precast ®
Enclosure Solutions FIBRELYTE
©
Copyright 2009
Oldcastle Precast Inc.
®

Back to Table of Contents
Copyright © 2009 by Oldcastle Precast Inc. 75
SYN12D
FL12T
FIBRELYTE BOX
No. FL12DBOX
26 lbs.
FIBRELYTE LID
No. FL12D
11 lbs.
SYN12S
FL12 BOX FL12 FIBRELYTE BOX
12" x 20"
www.oldcastleprecast.com
Oldcastle Precast ®
Enclosure Solutions
©
Copyright 2009
Oldcastle Precast Inc.
FIBRELYTE ®
Fibrelyte
Boxes

Back to Table of Contents
76 Copyright © 2009 by Oldcastle Precast Inc.
FIBRELYTE LID
No. FL30D
20 lbs.
SYN1324T
FL30T
FIBRELYTE BOX
No. FL30TBOX-12
26 lbs.
BL30T
BESLITE LID
No. BL30D
20 lbs.
FL30T BOX FL30T FIBRELYTE BOX
13" x 24"
www.oldcastleprecast.com
Oldcastle Precast ®
Enclosure Solutions
©
Copyright 2009
Oldcastle Precast Inc.
FIBRELYTE ®

Back to Table of Contents
Copyright © 2009 by Oldcastle Precast Inc. 77
FIBRELYTE LID
No. FL36D
35 lbs.
SYN1730TFL36T
FIBRELYTE BOX
No. FL36TBOX-12
40 lbs.
BL36T
FL36T BOX FL36T FIBRELYTE BOX
17" x 30"
www.oldcastleprecast.com
Oldcastle Precast ®
Enclosure Solutions
©
Copyright 2009
Oldcastle Precast Inc.
FIBRELYTE ®
Fibrelyte
Boxes

Back to Table of Contents
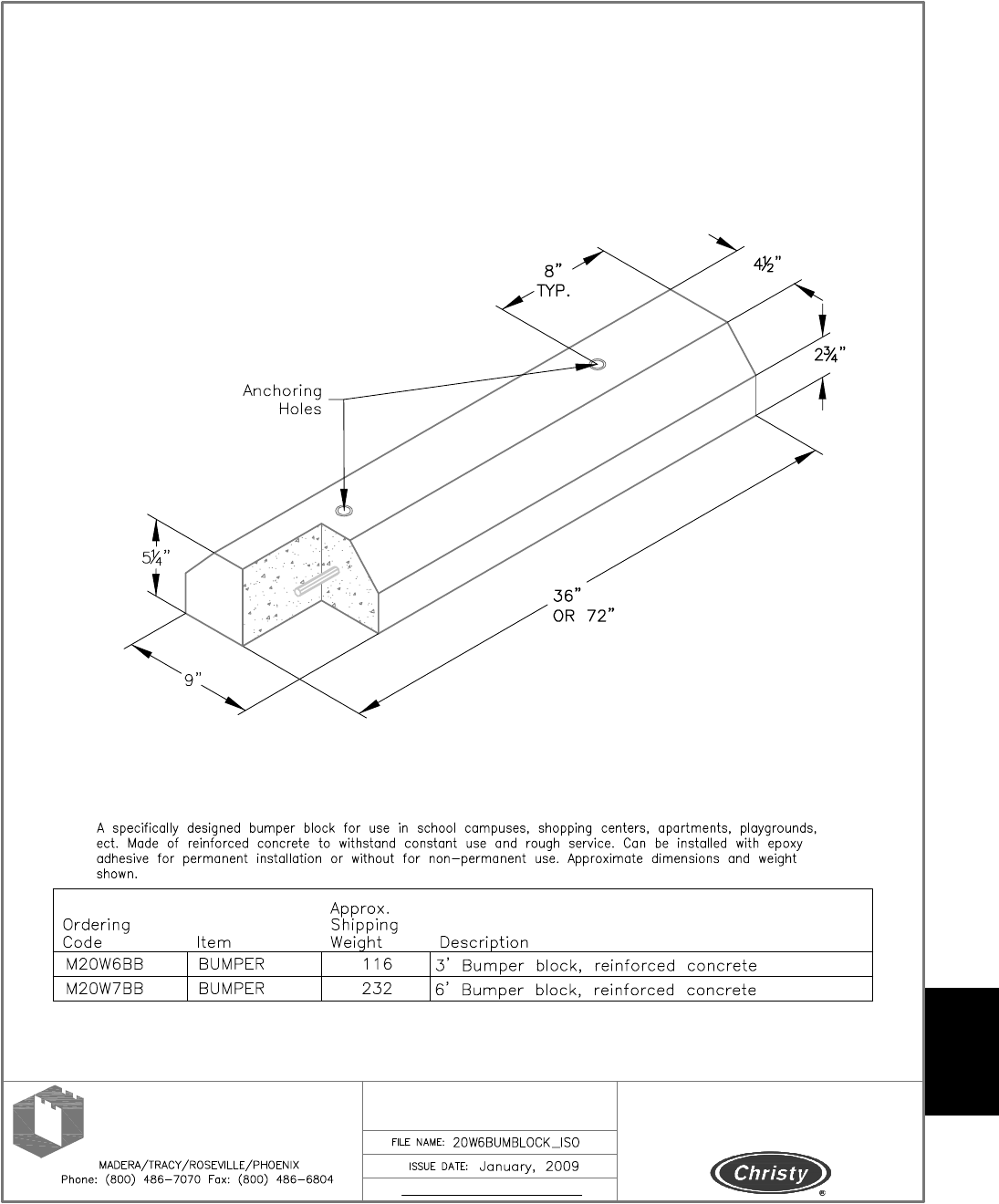
Copyright © 2009 by Oldcastle Precast Inc. 79
BUMPER BLOCK
No. M20W6BB
116 lbs.
BUMPER BLOCK
www.oldcastleprecast.com
BUMPER BLOCK
Oldcastle Precast ®
Enclosure Solutions
Copyright 2009
Oldcastle Precast Inc.
©
Miscellaneous

Back to Table of Contents
80 Copyright © 2009 by Oldcastle Precast Inc.
BICYCLE BLOCK
No. M20W8BYC
100 lbs.
BICYCLE BLOCK
www.oldcastleprecast.com
BICYCLE BLOCK
Oldcastle Precast ®
Enclosure Solutions
Copyright 2009
Oldcastle Precast Inc.
©

Back to Table of Contents
Copyright © 2009 by Oldcastle Precast Inc. 81
SPRINKLER BLOCK-A
No. M30SBA
48 lbs.
SPRINKLER BLOCK-B
No. M30SBB
6 lbs.
SPRINKLER BLOCK-C
No. M30SBC
94 lbs.
SPRINKLER BLOCKS
www.oldcastleprecast.com
SPRINKLER BLOCKS
Oldcastle Precast ®
Enclosure Solutions
Copyright 2009
Oldcastle Precast Inc.
©
Miscellaneous

Back to Table of Contents
82 Copyright © 2009 by Oldcastle Precast Inc.
SPLASH BLOCK-2
No. M50SPB2
82 lbs.
SPLASH BLOCK-1
No. M50SPB1
48 lbs.
SPLASH BLOCK
www.oldcastleprecast.com
SPLASH BLOCK
Oldcastle Precast ®
Enclosure Solutions
Copyright 2009
Oldcastle Precast Inc.
©

Back to Table of Contents
Copyright © 2009 by Oldcastle Precast Inc. 83
Brass Nut,
Hex
Brass Washer
Brass J-Bolt
Large Penta Bolt
Standard Penta Bolt
Standard Shoulder Bolt
Large Penta
Bolt Socket
Small Penta
Bolt Socket
Brass Nut,
Large Penta
Brass Nut,
Small Penta
MISCELLANEOUS PARTS
Oldcastle Precast ®
Enclosure Solutions
www.oldcastleprecast.com
Copyright 2009
Oldcastle Precast Inc.
©
MISC. PARTS
Miscellaneous

Back to Table of Contents
Copyright © 2009 by Oldcastle Precast Inc. 85
Cross
Reference
Guide
FGh
Christy BES Brooks
Curb & Traffic Vavle Boxes
F01 Valve Box F1 Valve Box
Cross Reference Guide
F08 Valve Box F8 Valve Box #1 RD Valve Box
F08D F8D #1 RD
F08C F8C #1 RDT
V01-71C V1-71C #1 RDTG
F14 Curb Valve Box F14 Curb Valve Box #30 18 Curb Valve Box
F08D F08D #30 18
FL08D No Equal
F08C F08C #30 18 T
V01-71C V01-71C
F22 Curb Valve Box F22 Curb Valve Box #30 30 Curb Valve Box
F08D F08D #30 30
FL08D No Equal
F08C F08C #30 30 T
V01-71C V01-71C
G03 Box #3 Traffic V.B.
G03C No Equal #3RTT
G05X12 #3RT-12
G04 Box #4 Traffic V.B.
G04C No Equal #4RTT
G05X12 #4RT-12
G05 Traffic Valve Box G05 Traffic Valve Box
G05VP Traffic Valve Box G05VP Traffic Valve Box
G05C G05C
G05X12 G05X12
Curb & Trafc Valve Boxes

Back to Table of Contents
86 Copyright © 2009 by Oldcastle Precast Inc.
FGh
Christy BES Brooks
Cross Reference Guide
Drainage Boxes
V01 Drain Box V1 Drain Box #1R Drain Box
V01-71C V1-71C #1 RDTG
N09 Drain Box V09 Drain Box #36 Drain Box
V09-71C V09-71C #36 DTG
V64 Drain Box
B09X12 C09X12 #36 Ext.
B24 Drain Box V24 Drain Box
V24-71C V24-71C
#1818 Grate
V64X6 No Equal
V64 Drain Box
V12 Drain Box V12 Drain Box #1212 Drain Box
V12-71C V12-71C #1212 Grate
V64X12 V64X12 #1818 Extension
V12X12 V12X12
V64-71C V64-71C
#1818 Drain Box
B24 Ext. (same as box) C24X12

Back to Table of Contents
Copyright © 2009 by Oldcastle Precast Inc. 87
Cross
Reference
Guide
FGh
Christy BES Brooks
N09 Electrical Box C09E Electrical Box #3 1/2 PB Electrical Box
Cross Reference Guide
Electrical Boxes
N09J C09J #3 1/2 PB-T (C.I.) B/D
N09D C09D #3 1/2 PB
N09T C09T #3 1/2 PB B/D
FL09T No Equal
N09-61D C09-61D #3 1/2 PB-T (STL)
N09-61J C09-61J #3 1/2 PB-T (STL) B/D
B09X12 C09X12
B16 Electrical Box C16E Electrical Box #5 PB Electrical Box
B09SL C09SL #36 Slab
N16D C16D #5 PB
N16T C16T #5 PB B/D
FL16T No Equal
N16J C16J #5 PB-T (C.I.) B/D
N16-61D C16-61D #5 PB-T (STL)
N16-61J C16-61J #5 PB-T (STL) B/D
B16SL C16SL
B16X12 C16X12
N30T C30T #38 PB B/D
N30 Electrical Box C30E Electrical Box #38 PB Electrical Box
N30D C30D #38 PB
FL30T No Equal
N30-61D C30-61D #38 PB-T (STL)
B30X12 C30X12 #38 Ext.
N30-61J C30-61J #38 PB-T (STL) B/D
B30SL C30SL #38 Slab
N36 Electrical Box C36E Electrical Box #66 Electrical Box
FL36T No Equal
N36D C36D #66 PB
N36T C36T #66 PB B/D
N36-61D C36-61D #66 PB-T (STL)
N36-61J C36-61J #66 PB-T (STL) B/D
B36X12 C36X12
N16 Electrical Box

Back to Table of Contents
88 Copyright © 2009 by Oldcastle Precast Inc.
FGh
Christy BES Brooks
Cross Reference Guide
Electrical Boxes
B36SL C36SL
N40T C40T #67 PB B/D
B40 Electrical Box C40E Electrical Box #67 PB Electrical Box
N40D C40D #67 PB
#67 PB-T (STL) B/D
B40X10 C40X10 #67 Ext.
N40-61D C40-61D #67 PB-T (STL)
N40-61J C40-61J
B40SL C40SL #67 Slab
B44 Meter Box C44E Electrical Box
B44-62D C44-62D
B44D2 C44D2
B44X8 C44X8
B44SL C44SL
#68 PBN48D2 C48D2
N48 Electrical Box C48E Electrical Box #68 PB Electrical Box
B48D C48D #68 PB
N48-62J C48-62J #68 PB-T (STL) B/D
B48T2 C48T2 #68 PB B/D
B48-62D C48-62D #68 PB-T (STL)
B48X10 C48X10 #68 Ext.
B48SL C48SL #68 Slab
N52 Electrical Box C52E Electrical Box #69 PB Electrical Box
N52D2 C52D2
#69 PB-T (STL)B52-62D C52-62D
N52D3 C52D3 #69 PB
N52T3 C52T3 #69 PB B/D
B52SL C52SL #69 Slab
N52-62J C52-62J #69 PB-T (STL) B/D
B52X10 C52X10 #69 Ext.
N40 Electrical Box

Back to Table of Contents
Copyright © 2009 by Oldcastle Precast Inc. 89
FGh
Christy BES Brooks
C09XD
C09XP
C09XG
#36 H
B09X12 C09X12 #36 Ext.
B09SL C09SL #36 Slab
No Equal
B09-61D C09-61D #36 S
B09-61G C09-61G
B09XD #36 T
B09XP
B09XG #36 1 piece
FL09XD
B09SL C09SL
B09X Meter Box C09X Meter Box #36 Meter Box
B09-61G C09-61G
B09X12 C09X12
FL09D No Equal
B09-61D C09-61D
B09P C09P
B09G C09G
B09C C09C
B09D C09D
B03-61D C03-61D
B09 Meter Box C09W Meter Box
B03D C03D #3s 1 piece
B03PB C03D
Cross Reference Guide
Water Meter Boxes
B03 Meter Box C03W Meter Box #3 Meter Box
B03C C03C #3T
Cross
Reference
Guide

Back to Table of Contents
90 Copyright © 2009 by Oldcastle Precast Inc.
FGh
Christy BES Brooks
Cross Reference Guide
Water Meter Boxes
B12X12 C12X12 #37 Ext.
B12-61G C12-61G #37 TR
B12S C125 #37 S
B12-61D C12-61D #37 T
FL12D No Equal
B12GP C12GP
B12P C12P
B12G C12G #37 H
B12 Meter Box C12 Meter Box #37 Meter Box
B12D C12D #37 1 piece
B16C C16C
B16 Meter Box C16W Meter Box
B16D C16D
B16P C16P
B16G C16G
FL16D No Equal
B16GP C16GP
B16-61D C16-61D
B16-61G C16-61G
B16-61GP C16-61GP
B16X12 C16X12
B16SL C16SL
B24 Dual Meter Box C24 Dual Meter Box Dual 11 Meter Box
B24D C24D Dual 11 pieces
B24E C24E Dual 11 5
B24G C24G Dual 11 5
B24-61D C24-61D Dual 11 T
B24-61G C24-61G Dual 11 TR
B24 Ext. (same as box) C24 Ext. Dual 11 Ext.

Back to Table of Contents
Copyright © 2009 by Oldcastle Precast Inc. 91
FGh
Christy BES Brooks
Cross Reference Guide
Water Meter Boxes
B30 Meter Box C30 Merter Box #38 Meter Box
B30D C30D #38 1 piece
B30P C30P
B30E C30E #38 S
B30G C30G #38 H
B30GP C30GP
FL30D No Equal
#38 TB30-61D C30-61D
#38 TRB30-61G C30-61G
B30-61P C30-61P
B30-61GP C30-61GP
#38 Ext.B30X12 C30X12
#38 SlabB30SL C30SL
#66 Meter BoxB36 Meter Box C36 Meter Box
#66 1 pieceB36D C36D
B36P C36P
#66 SB36E C36E
#66 HB36G C36G
B36GP C36GP
FL36D No Equal
#66 TB36-61D C36-61D
B36-61P C36-61P
#66 TRB36-61G C36-61G
B36-61GP C36-61GP
B36X12 C36X12 #66 Ext.
B36SL C36SL #66 Slab
B40 Meter Box C40 Meter Box #67 Meter Box
B40D C40D #67 1 piece
B40P C40P
B40M C40M #67 S
B40-61D C40-61D #67 T
B40-61P C40-61P
B40-61G C40-61G #67 TR
B40X10 C40X10 #67 Ext.
B40SL C40SL #67 Slab
Cross
Reference
Guide

Back to Table of Contents
92 Copyright © 2009 by Oldcastle Precast Inc.
FGh
Christy BES Brooks
Cross Reference Guide
Water Meter Boxes
B44 Meter Box C44 Meter Box
B44D2 C44D2
B44E2 C44E2
B44-62D C44-62D
B44-62G C44-62G
B44X8 C44X8
B44SL C44SL
B48 Meter Box C48 Meter Box #68 Meter Box
B48D C48D #68
B48M C48M #68 S
B48D2 C48D2 #68 2 piece
B48M2 C48M2 #68
B48-62D C48-62D #68 T
B48-62G C48-62G #68 TR
B48-62GP C48-62GP
B48X10 C48X10 #68 Ext.
B48SL C48SL #68 Slab
B52 Meter Box C52 Meter Box #69 Meter Box
B52D2 C52D2
B52D3 C52D3 #69 3 piece
B52F3 C52F3 #69 3 piece, r/1
B52M3 C52M3 #69 3 piece
B52-62D C52-62D #69 2 piece T
B52-62G C52-62G #69 2 piece TR
B52X10 C52X10 #69 Ext.
B52SL C52SL #69 Slab

Back to Table of Contents
CONCRETE COLLAR
AROUND BOX
Gravel Base (Approx. 3" to 6")
with Cover
Meter Box or Pull Box
COMPACTED FILL
ASPHALT PAVEMENT
OR CONCRETE
8"
Installation Procedure
Installation in Concrete or Pavement
for driveways,parking lots and off-roadwayapplications
where subject to occasional non-deliberate light vehicles.
Note: Minimum concrete collar strength is 3,000 psi.
CONCRETE
COLLAR
FIELD PREPARATION
Prepare the excavation approximately 6" deeper
than the overall height of the enclosure. The length
and width of the excavation should be determined by
adding 4" to 6" to the overall length and widthof the
box.
INSTALLA TION RECOMMENDATIONS
Placement of approximately 3" to 6" of compacted
material such as sand or gravel is the recommended
material because of its drainage characteristics. The
compactedmaterial should be leveled so the top of the
box is flush to grade.
BACKFILLING
Place selected backfill into the excavation at 12" lifts
and compact. The backfill should be discontinued
approximately 8" below the finishgrade. The final 8"
of the excavation should be finished with concrete.
This should be accomplished by providing a form
around the enclosure thatwould produce a 8" wide
collar (see sketch).
QUIK-SPECIFICATION
Underground enclosures shall be manufactured by
Oldcastle/Christy. Boxes and covers shall be concrete and have a
pedestrian rated minimum vertical test load of 350 pounds per
square foot. The concrete shall test to a minimum of 4500 psi
compressive strength.
Oldcastle Precast ®
Enclosure Solutions

© 2009 Oldcastle Precast, Inc.
MADERA
801 South Pine Street
Madera, CA 93637
Toll Free: 800-486-7070
Local: 559-675-1813
Fax: 800-486-6804
PORTLAND
11402 NE Marx Street
Portland, OR 97230
Toll Free: 800-509-6150
Fax: 503-255-0307
RIVERSIDE
2434 Rubidoux Blvd.
Riverside, CA 92509
Local: 888-683-6595
Fax: 888-683-6599
TRACY
10304 Linne Road
Tracy, CA 95377
Toll Free: 888-237-5055
Local: 209-820-2101
Fax: 209-229-1013
PHOENIX
5435 West Mohave Street
Phoenix, AZ 85043
Local: 602-272-1369
Fax: 602-233-2818
TUCSON
5230 East Canada Street
Tucson, AZ 85706
Local: 520-574-9535
Fax: 520-574-1545
oldcastleprecast.com/enclosuresolutions christyconcrete.com
1-800-486-7070