Red Lion Controls Catalog Ver 23
2014-11-11
: Pdf 102204-Attachment 102204-Attachment 011828 Batch12 unilog
Open the PDF directly: View PDF
.
Page Count: 1040 [warning: Documents this large are best viewed by clicking the View PDF Link!]
- Red Lion Innovative Control Solutions Catalog
- History
- What's New
- Catalog Guide
- Selection Guides
- Operator Interface
- Totalizing Counters
- Preset Counters
- Rate Meters
- Timers
- Digital Panel Meters
- Temperature Controllers
- Large Displays
- Signal Conditioners
- Sensors
- Quick Specs
- HESS
- PSAH
- Inductive Proximity Sensor
- PSAC
- Flat Pack Proximity Sensors
- Magnetic Proximity Sensor
- Magnetic Pickups
- Logic Magnet Pickups
- ARCJ
- ZR Motor Feedback
- Gears
- ZUJ & ZUL
- ZR NPN OC
- ZSD
- ZOD & ZOH
- ZCG, ZFG, & ZGG
- ZCH, ZFH, & ZGH
- ZUK
- ZPJ
- ZBG, ZBH, & ZHG
- ZDH & ZNH
- ZMD
- ZLZ
- DC Photo Electric
- PRM & RRM
- PT - Pressure Transmitter
- TMP
- TMPC, TMPU, & TMPB
- TMP Quick Disconnect
- Transition Joint Probes
- TMPRT
- TMPCN
- TMPT & TMPTR
- CT - Current Transformer
- CT004
- CTD
- CTL
- CTR
- CTS
- PC Board Mount Displays
- Accessories
- Enclosures & Panels
- Sensor Wiring Guide
- Part Number Index

SenSorS and encoderS
Signal ConditionerS
Protocol conversion
and communications
digital and analog
panel meters
OperatOr Interfaces
modular control and
data acquisition
Volume 23
Volume 23
Insight Enabled
Advanced HMIs with integrated Ethernet and web
connectivity control and monitor multiple devices, and
large LED displays communicate to the plant floor.
• G3 Series HMIs: Full-featured OI terminals
• G3 Kadet ™ Series HMIs: value
and essential HMI features
• Plant Floor Marquee and
Big Flexible Display:
LED display boards with
advanced connectivity
Modular Controller Series: Versatile multi-loop and data
acquisition platform with protocol conversion, web server
and Ethernet connectivity and more.
Base- or DIN-rail mounted devices for conversion or isolation featuring
microprocessor-based configuration and minimal drift.
• IAMS Universal Signal Conditioners
– Frequency Inputs
– Process Inputs
– Temperature Inputs
The trusted and preferred brand of digital and analog panel meters in the widest
range of models, sizes and capabilities, from our basic CUB indicators to versatile PAX
process meters that let you change capabilities
with plug-and-play, field installable cards.
• Counters, Rate Meters, Timers
• Current, Process, Voltage, Strain Gage
• Large Displays for all of the above
• Temperature; on/off, PID, limit alarm
Known worldwide as the undisputed leader in digital and analog
panel meters, Red Lion has also gained acclaim for innovations in
operator interface panels, protocol conversion, device-level fieldbus and LAN/WAN
communications, data logging, PID controllers and signal conditioning devices.
Red Lion products enable insight into your process like no other.
Red Lion’s extensive line of sensors and encoders let you complete
your application without going to additional providers.
• Encoders
• Magnetic pick-ups
• Proximity sensors
• Photoelectric sensors
• Rotary pulse generators
• Length sensors
OperatOr Interfaces & DIspLaYs
modular control & data acquisition
Signal ConditionerS
digital and analog panel meters
Protocol conversion and communications
SenSorS and encoderS
Red Lion Controls ph: (717) 767-6511 fax: (717) 764-0839 www.redlion.net
Operator Interface
Protocol Conversion
Signal Conditioning
Panel Meters
Data Acquisition
• Data Station® Plus Series: Powerful and
versatile data management platform
with web-enabled communications,
data logging and protocol conversion
• PID modules
• Analog and digital I/O
• Communication modules
• Strain gage
• Temperature input
Perform protocol conversion among any of over 170 protocols.
Innovative operator interface,
measurement, monitoring
and control solutions
Operator Interface • Panel Meters • Data Acquisition
Innovative Control Solutions
Protocol Conversion • Signal Conditioning • Sensors

www.redlion.net
Complete technical data, customer support and free software.
Red Lion’s comprehensive web site offers complete product information and
technical specifications, as well as Crimson software, updated product
bulletins, technical and customer support, and contact information for your
local Red Lion distributor.
n Literature Downloads and Hardcopy Request: Access our comprehensive
library of product manuals, installation information, software manuals and application
notes online, and/or request hardcopies and catalogs delivered at no charge.
n Free Crimson® and Configuration Software: Download demos and the latest
revisions of the Red Lion Crimson® software, plus the device drivers, cable
specifications, DeviceNet EDS files and Profibus GSD files required for your application.
n Product Dimension Library: access free downloadable dimensioned drawings in
.dwg format, for easy import into your drawings.
n Product Cross Reference: Compare features and upgrade to Red Lion products from
other brands by entering part numbers into Red Lion’s Competitor Cross Reference.
n Virtual Help Desk: Use the Red Lion Virtual Help Desk to search our Knowledge
Base, browse through our Frequently Asked Questions (FAQ’s) for quick answers, read
Application Solutions to find out how Red Lion can solve your application or watch
Product Tutorials and Presentations.
n Training Resources: Learn about Red Lion’s comprehensive in-house and field
training programs, or use the web to join live product tutorials and presentations.
n Online Customer Service: Contact our Customer Service Department online for
answers on your schedule. Red Lion Customer Service Representatives are ready to
take your orders, check product availability and order status, handle literature
requests, and answer any ordering questions you may have.
n Lifetime Technical Support: Find the Red Lion Technical Support Team located
nearest you who will provide pre- or post-sales support on Red Lion products.
n Agency Approvals: Search our comprehensive database for information on UL,
CE, CSA and FM approvals for Red Lion’s products. View information on UL
recognized or rated products, RoHS-WEEE conformity and Hazardous Area approvals.
n Installation Tips: Learn valuable installation information including advice on
preventing noise interference in your industrial environment.
Red Lion solutions worldwide.
Red Lion Controls
A proud global member of Spectris.
Headquartered in York, Pennsylvania USA, Red Lion
provides strong support for international customers through
offices located in the Netherlands, China, and India, plus
over 850 distributors in 65 countries. Red Lion Controls is
a member of Spectris, the productivity-enhancing
instrumentation and controls company. With sales of £668
million in 2007 and employing approximately 5,500 people
worldwide in its 13 business units, Spectris is listed on the
London Stock Exchange (symbol: SXS) and is a founder
member of techMARK, the London Stock Exchange’s
index for technology companies. For more information on
Spectris, visit www.spectris.com
Red Lion’s global distribution network ensures the availability
of the same high-quality Red Lion solutions virtually
anywhere in the world. For single-source solutions locally
or technology deployment to multiple facilities around the
globe, Red Lion has the answers and products you need.
Free live application and technical assistance
at 717-767-6511
Red Lion’s commitment to customer service is second to
none. So when you have questions, you can talk to a real
person instead of a machine. Our customer service and
tech support staff stands ready to help you choose the
Red Lion product that meets the needs of your application,
and put you in touch with the local distributor who can
serve your needs personally.
Red Lion Controls
Worldwide Headquarters
20 Willow Springs Circle
York, PA 17406
USA
Phone: +1 (717) 767-6511
Fax: +1 (717) 764-0839
sales@redlion.net
Red Lion Controls
Europe, ME Africa
Printerweg 10
3821 AD Amersfoort
The Netherlands
Phone: +31 (0) 33-4723-225
Fax: +31 (0) 33-4893-793
europe@redlion.net
Toll Free from UK and France:
00800 REDLIONS
(00800 733 54667)
Red Lion Controls
India
54, Vishvas Tenement,
Near Railway Crossing
GST Road, New Ranip,
Ahmedabad-382480
Gujarat, India
Phone: +91 98795 40503
Fax: +91 79 27531350
india@redlion.net
Red Lion Controls
China
Unit 101, XinAn Plaza
Building 13
No.99 Tianzhou Road
ShangHai, P.R. China 200223
Phone: +86 21 6113-3688
Fax: +86 21 6113-3683
asia@redlion.net
SenSorS & encoderS
Signal ConditionerS
OperatOr Interfaces
digital & analog
panel meters
Protocol conversion
& communications
modular control &
data acquisition
Red Lion’s Data Station Plus provides a powerful set of data integration tools in a single DIN-rail mounted
box. With the ability to perform protocol conversion among any of over 170 protocols, the Data Station Plus
supports a minimum of seven protocols running and exchanging data simultaneously, over three serial and four
Ethernet™ ports. Additional serial ports or DeviceNet™, ProfibusDP, or CANopen/J1939 communications cards
can be added to further enhance protocol conversion capabilities. The Data Station Plus facilitates
communication to multiple PLCs, drives, motion controllers, HMIs, motor control products, breakers, SCADA
and PCs with a host of on-board drivers. A web-based HMI feature allows you to monitor and control processes
remotely via a web browser.
Red Lion’s Modular Controller series offers a cost-effective solution to integrating multi-zone PID control,
data acquisition and I/O into your PC, DCS or PLC control system. The Modular Controller product line has all
the communication, protocol conversion, data logging and web-based HMI capabilities of the Data Station Plus,
while adding the ability to manage up to 32 zones of PID control for analog and digital I/O. With capabilities to
handle high I/O counts between a minimum of 96 analog to a maximum of 224 digital I/O, the Modular
Controller supports up to 16 hot-swappable controller modules with automatic reprogramming, available with
configurations ranging from analog input and output, digital I/O, PID control, strain gage and temperature input.
Red Lion also offers a range of DIN rail mount Temperature and PID Loop Controllers and accessories.
The preferred brand for many years running, Red Lion has more high-quality Digital and Analog Panel Meter
solutions than any other supplier. Digitally display count, rate, time, voltage, current, process, strain gage and
temperature data in the widest range of models, sizes and capabilities—from Red Lion’s standard CUB family
to the versatile PAX family. Some models facilitate extended capabilities via plug-and-play, field-installable
cards, allowing users to easily add or change features including analog outputs, communication, setpoints and
more. To provide maximum visibility in plant floor and control room environments, Red Lion offers a number of
analog meters, counter, timer and rate panel meters featuring Large Displays that provide vastly improved
readability from distances, with display sizes from 1.5" to 4" and LED Graphical Displays up to 19" high.
Red Lion’s innovative G3 Series Human Machine Interface panels provide complete HMI functionality for
PLCs, motor drives and other communications-capable devices. G3 Series HMIs with integrated Ethernet ability
network-enable any serial device connected to the panel. G3 HMIs have the same data management features
as Red Lion’s Data Station series with the addition of an integrated LCD display or touchscreen in display sizes
ranging from 3" to 15". For applications that don’t require data logging or web-based HMI, Red Lion’s
G3 Kadet Series HMIs offers a similar set of capabilities including multiple serial ports, Ethernet connectivity,
visualization, protocol conversion and configuration using Red Lion’s free Crimson® software.
To modify existing signals into the desired format for an application, Red Lion manufactures a wide array of
Signal Conditioning Products that assure the proper interface and output. Input types range from RTD,
thermocouple, process, frequency, volt and current, and can convert to frequency and/or various analog outputs.
Communication conversions are also available. Features include 3-way isolation, sensor break detection,
programmable inputs, multiple input-to-output conversion combinations and loop power.
Red Lion offers a complete line of Sensors and Encoders to complement the multiple products that require
sensor inputs. Choose from photoelectric, proximity, pressure, thermocouple, RTD, magnetic pickup, shaft
encoders, thru-bore encoders, length sensors, temperature, and motor and gear sensors that provide seamless
integration with Red Lion products.
Red Lion product families
*Microsoft is a registered trademark of Microsoft Corporation in the United States and/or other countries. CompactFlash is a registered trademark of the CompactFlash Association.

A global leader in process measurement, controls and automation,
Red Lion Controls continues to be recognized as industry’s preferred
brand of panel meters, offering the broadest selection of rate, count and
panel indication solutions in the world. The experience gained from over
35 years in the control and automation industry has allowed Red Lion to
develop a number of successful related products, including advanced lines
of Human Machine Interface (HMI) and protocol conversion technology,
as well as PID loop controller and process controller products.
Red Lion insight enabled.
From humble beginnings, a world-class innovator.
Founded in a garage in 1972, today Red Lion remains committed
to domestic manufacturing, designing and producing its products in
a state-of-the-art, 100,000 sq. ft. facility in York, Pennsylvania. The
proximity and close interaction of our design and manufacturing
arms in the United States provide Red Lion unique and unparalleled
customer focus and agility. A member of Spectris plc, the
productivity-enhancing instrumentation and control company, Red
Lion supports a vast network of specialized distributors from its
USA., European and Asian offices. Understanding manufacturing
problems and providing innovative, common sense solutions has
earned Red Lion the loyalty of its global customers, and the
recognition of top industry awards year after year.
See inside your process.
Red Lion’s core competency lies in providing simple solutions
that enable insight into complex, mixed-vendor product processes.
Through basic, essential indicators and large I/O count analog and
digital process controls that feature advanced communications
capabilities, Red Lion has tamed process complexity through the
conversion of more than 170 protocols—simultaneously enabling
open solutions for data management, visualization and remote
access. In short, Red Lion provides solutions that reveal untapped
or inaccessible data that can be used to make processes run
more efficiently.
Crimson®. A powerful universal software platform.
Central to the success and adoption of Red Lion as an industry-
leading technology innovator is Red Lion’s Crimson® software,
which seamlessly ties together products from multiple vendors,
creating insight into a process from a single entry point. Unlike
proprietary systems, this software platform is universal across all
Red Lion products with programming capabilities, facilitating
communication among dissimilar devices and protocols while
reconnecting orphaned and legacy technologies.
From this entry point, data from one vendor’s product can be sent
to another vendor’s dissimilar product. Data collection can be
centrally stored, emailed and pushed to an FTP site. Alarms can be
emailed or sent by text message to a mobile phone. Different
vendors’ products can be configured using Red Lion’s pass-
through feature. This can all be achieved remotely via standard
network communications. Likewise, operational status can be
viewed in real-time, and process data can be visualized with a web
browser or uploaded in IT-ready CSV files. Making it simple to
monitor, analyze and trend data via common productivity platforms
such as Microsoft® Office.
OEM solutions. Powered by Red Lion.
As one of the world’s leading innovators in monitoring and control,
Red Lion technology plays an instrumental role in many OEM
products. Whether integrated or private branded, Red Lion offers
advanced technology that adds value to products and greatly
expands the capabilities of legacy devices. Many recognizable
global brands feature integrated technology “Powered By Red
Lion”, adding advanced capabilities and value to their product
portfolios. Our engineering teams work with OEM customers to
provide innovative and tailored solutions, and our responsive
service demonstrates a strong commitment to our third party
customers. For inquiries on customized products, call our Technical
Sales Department at (717) 767-6511.
The growth and success of Red Lion is fueled by an ongoing
commitment to delivering the greatest value in its products—not
only in terms of affordability and performance, but also in USA-
made quality, seamless integration, superior functionality and
sophisticated simplicity. With an unparalleled combination of
innovation, features and capabilities, Red Lion represents best-in-
class solutions for monitoring, control and automation across a
broad range of discrete and process manufacturing environments.

Red Lion what’s new
G3 Series Operator Interface – World renowned operator interface
G3 Kadet Series Operator Interface – Functional interface and connectivity features for
applications where FTP access, data logging, and web server capabilities are not needed
Data Station – Protocol converters
Modular Controller – Multi-zone loop controller
PFM – The tri-color display’s graphical design allows bargraphs, custom symbols and
graphics. There are four sizes for a wide range of applications.
Compact Meters – Expanded the CUB5 line with analog inputs
New Universal Signal Conditioners – Easily programmable IAMS signal conditioners
New Line Of Large Digital Displays – Large display timers, counter/rate, serial slave
display and DC volt/current/process meters
Encoders – Rotary pulse generator selection has grown to include many new thru-bore
encoders, shaft encoders and accessory items
New PAX Lite Models – PAXLA accepts DC current, DC voltage, or process input signals;
PAXLCR features two independent counters and separate rate display capability; PAXLT
accepts thermocouple and RTD inputs
New Current Transducers – New non-contact, current transducers to convert high level
current signals into simple 4 - 20 mA or 0 - 10 VDC process signals
USB Interface – USB programming cards for the CUB5 and PAX meters
CUB5 Dual Counter/Rate Meter Upgrade – Expanded the capabilities by adding a second
setpoint. Capabilities now include batch counting and control
New Power Supply – New MLPS2 offers 24 VDC for use with the CUB5 Series.
Communication Gateway – Serial to Ethernet connectivity
Temperature Sensors – 50 new Thermocouple and RTD sensors
We’ve compiled a list with just a brief description to let you know about the new and
exciting products Red Lion has added to our already extensive list of product offerings.
Each of the products shown on this list can be found in the catalog you are holding.

This edition of the Red Lion products catalog offers several tools to help you find
the exact control solution you need, whether it’s instrumentation, indication, panel
meters, communications, data acquisition or interface devices.
Products are grouped by section. Preceding each section, you’ll find a summary of
general specifications for the product group. Product listings offer a detailed look at
specifications including description, applications and features, along with specific
technical data such as voltages, input and output, physical dimensions, wiring
diagrams, tutorials and ordering information.
Red Lion catalog guide
More ways to find the right solutions.
There are also several alternative methods of determining the best product for your application:
n Product Selection Guide (Starting on page 7)
Helps you determine the appropriate product model based on your application parameters.
n Quick Spec Comparison Grid (Beginning of each section)
Offers a side-by-side comparison of models within a given product group.
n Product Replacement Guide (Following “Quick Specs” in each section)
A cross reference to the current Red Lion models to provide a functional replacement for
obsolete products. Always refer to replacement product literature as differences may exist.
n Product Lookup (Starting on page 1013)
An historical reference of current and past Red Lion products.
Industry and application experts at your disposal.
Because Red Lion’s selection of control solutions is so vast and growing every day, you might find the best
way to get what you need is by asking your local Red Lion distributor. We choose nothing but the best and
most experienced industry professionals to represent our products and give them the support and resources
to help our customers deploy the best solutions, quickly.
In some cases, you may want more advice. That’s where Red Lion’s dedicated customer support and technical
assistance teams can help. We respect your time by providing real answers from real people. Not automated
phone menus and stock answers. Red Lion also has an extensive Virtual Help Desk with Knowledge Base,
technical notes, tutorials and FAQs easily accessible 24/7 on our web site, plus convenient email technical
assistance. So you have several options to get the answers, and solutions you need:
n Personal service from your Local Red Lion Distributor
n Live customer service, application and technical assistance at 717-767-6511
n Online Virtual Help Desk available 24/7 at www.redlion.net
n Email tech support for a prompt, personal response at techsupport@redlion.net
n Tutorials and Training available pre- and post-sale

11-717-767-6511
Table of Contents
Selection Guides
Counter 7
Rate 8
Timer 9
Digital Panel Meter 10
Temperature/Process 11
Signal Conditioning 12
Large Displays 13
Operator Interface Section
G303 3.2" Operator Interface Terminal - Monochrome 17
G306M/S 5.7" Operator Interface Terminal - Monochrome 19
G306A 5.7" Operator Interface Terminal - 256 Color 21
G308 7.7" Operator Interface Terminal - 256 Color 23
G308A 8.4" Operator Interface Terminal - 256 Color 25
G310 10.4" Operator Interface Terminal - 256 Color 27
G315 15" Operator Interface Terminal - 32K Color 29
G304K 4.3" Kadet O/I Terminal - 256 Color 31
G306K 5.6" Kadet O/I Terminal - 256 Color 33
G308K 8" Kadet O/I Terminal - 256 Color 35
G3RS Serial Communication Option Card for G3 37
G3CN CanOpen Option Card for G3 37
G3DN DeviceNet Option Card for G3 38
G3PB Profibus Option Card for G3 38
G3GSM GSM/GPRS Cellular Modem Option Card for G3 39
DSP Data Station Plus 40
CSMSTRV2 Modular Controller Master 42
CSMSTRLE Modular Controller with Multi Protocol Converter and Epansion Slot 44
CSMSTRSX/GT Modular Cont. W/Protocol Converter, Data Logger and Web Server 46
CSPID PID Loop Control Module for Modular Controller 48
CSSG Strain Gage Module for Modular Controller 50
CSTC Thermocouple Module for Modular Controller 52
CSRTD RTD Module for Modular Controller 52
CSINI Current Input Modules for Modular Controller 52
CSINV Voltage Input Modules for Modular Controller 52
CSDIO Digital Input/Ouput Modules for Modular Controller 54
CSOUT Analog Output Module for Modular Controller 56
XCRS Serial Communication Option Card for Modular Controller 58
XCCN CanOpen Option Card for Modular Controller 58
XCDN DeviceNet Option Card for Modular Controller 59
XCPB Profibus Option Card for Modular Controller 59
XCGSM GSM/GPRS Cellular Modem Option Card for Modular Controller 60
PFM Plant Floor Marquee Message Display 61
BFD Large 38.5" x 19" LED Display 62
DLC DIN Rail Dual Loop Controllers 64
SWITCH08 Eight Port Ethernet Switch 67
Section A - Totalizing Counters
QUICK SPECS 70
REPLACEMENT GUIDE 72
Model Title Page #
CUB7 Miniature 8-Digit Counter 73
CUB7W Miniature 8-Digit Counter with Voltage Input 77
CUB7W3 Miniature 8-Digit Counter with Voltage Input 81
CUB7P Miniature 8-Digit Programmable Counter 85
CUB7P1 Miniature 8-Digit Programmable Counter with 10 to 300 VAC/DC Input 90

2 www.redlion.net
CUB7P3 Miniature 8-Digit Programmable Counter with 10 to 30 VAC/DC Input 94
CUB4L Miniature 6-Digit Counter 98
CUB4L8 Miniature 8-Digit Counter 98
CUB4L8W Miniature 8-Digit Counter with Voltage Input 98
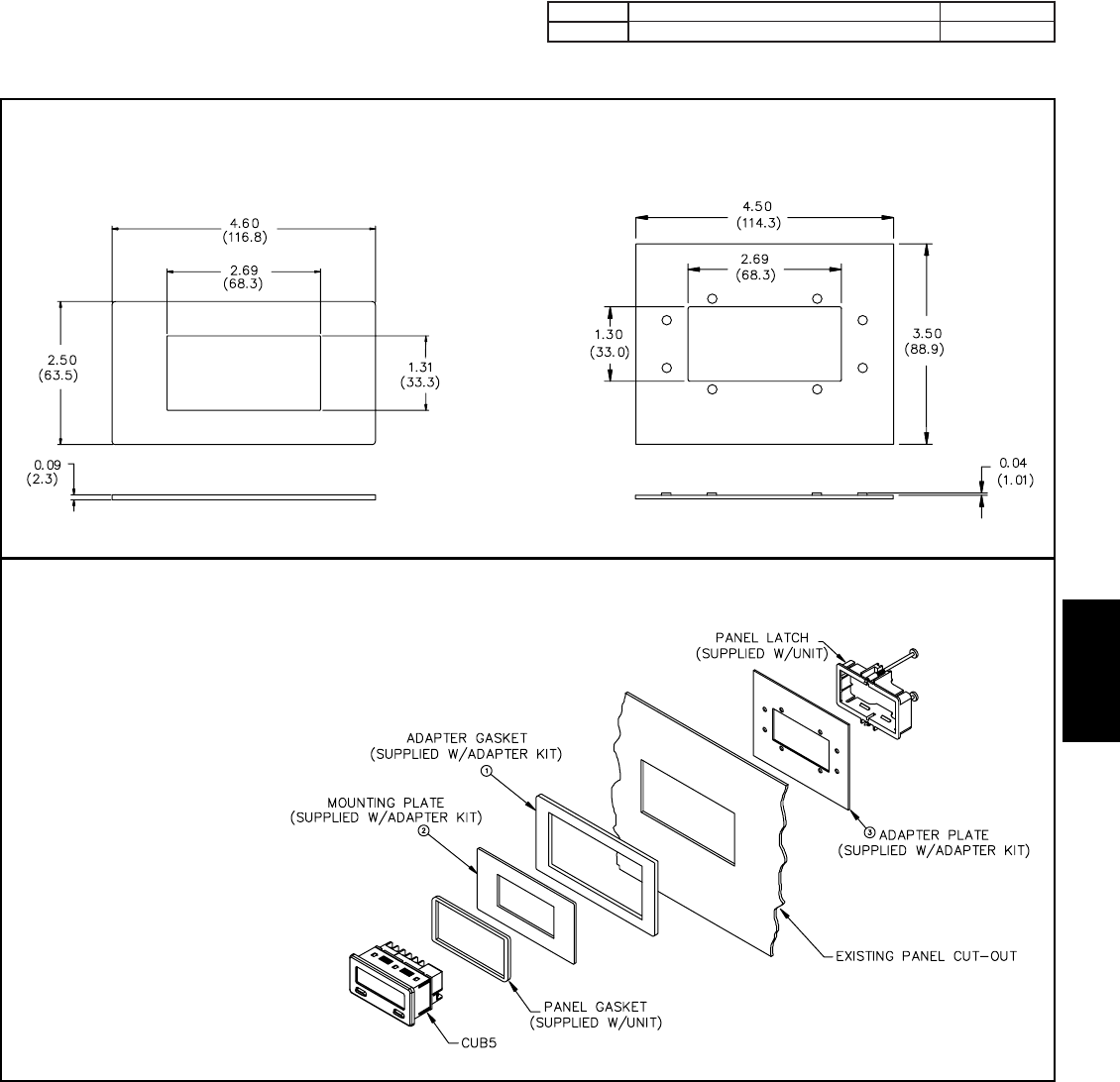
CUB5 Miniature Dual Counter & Rate Indicator 102
PAXLC PAX Lite 6-Digit Counter 118
PAXLCR PAX Lite 6-Digit Counter and Rate Meter 125
PAXC PAX 6-Digit Counter 137
PAXI PAX 6-Digit Counter and Rate Meter 169
Section B - Preset Counters
QUICK SPECS 172
REPLACEMENT GUIDE 175
Model Title Page #
CUB5 Miniature Dual Counter & Rate Indicator 177
C48C Preset Counter with Batch Option 178
PAXLCR PAX Lite 6-Digit Counter and Rate Meter 184
PAXC PAX 6-Digit Counter 185
PAXI PAX 6-Digit Counter and Rate Indicator 186
LG Preset Batch Counter & Rate Indicator with Batch Option 187
LGP Preset Batch Counter & Rate Indicator with Message Capability 193
Section C - Rate Meters
QUICK SPECS 200
REPLACEMENT GUIDE 203
Model Title Page #
DT8 Adjustable Time Base Rate Indicator 205
CUB5 Miniature Dual Counter & Rate Indicator 209
PAXLR PAX Lite Rate Meter 210
PAXLCR PAX Lite 6-Digit Counter and Rate Meter 217
PAXR PAX Rate Meter - Reference Page 218
PAXI PAX 6-Digit Counter and Rate Indicator 219
PAXLPT PAX Lite Process Time Meter 220
MDC Motor Drive Controller 227
HHT/HHTP Hand-held Tachometer 231
Section D - Timers
QUICK SPECS 234
REPLACEMENT GUIDE 236
Model Title Page #
CUB7T Programmable Timer 237
CUB7T1 Programmable Timer 241
CUB7T3 Programmable Timer 245
CUB5T Miniature Preset Timer and Cycle Counter 249
C48T Programmable Preset Timer 263
PAXTM PAX Preset Timer 268
PAXCK PAX Real-Time Clock - Reference Page 296
Section E - Digital Panel Meters
QUICK SPECS 298
REPLACEMENT GUIDE 303
Model Title Page #
CUB5V Smart DC Voltage Meter 305
CUB5I Smart DC Current Meter 317
PAXLI/V PAX Lite Current or Voltage Meter 329
PAXLIT PAX Lite 5 A AC Current Meter 336
PAXLHV PAX Lite AC Power-Line Monitor 342
PAXLA PAX Lite Universal DC Input Meter 347
DP5D Universal DC Input Display 358

31-717-767-6511
PAXD PAX Smart Universal DC Input Meter 378
PAXH PAX Smart AC Voltage & Current Meter - Reference Page 405
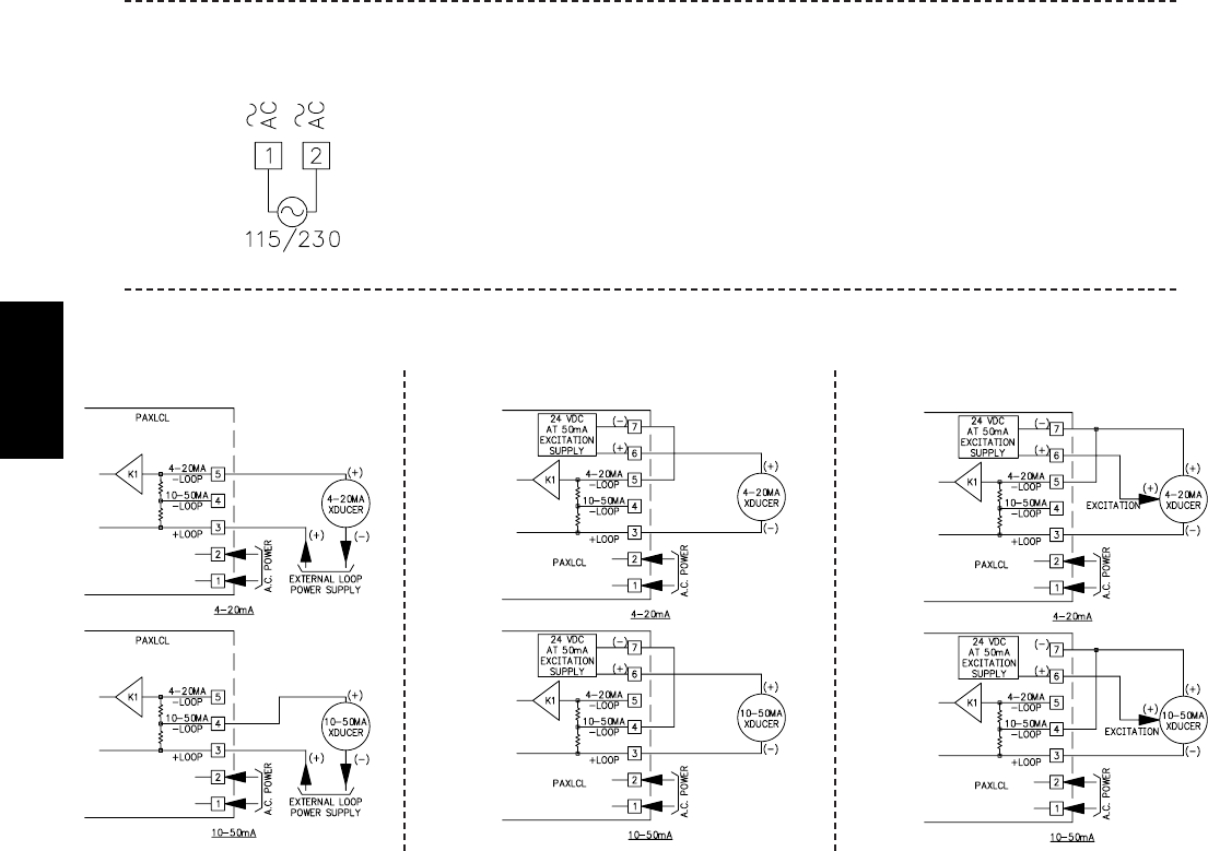
CUB4CL/LP Loop Powered Process Indicator/Current Loop Indicator 406
CUB5P CUB5 Smart Process Meter 410
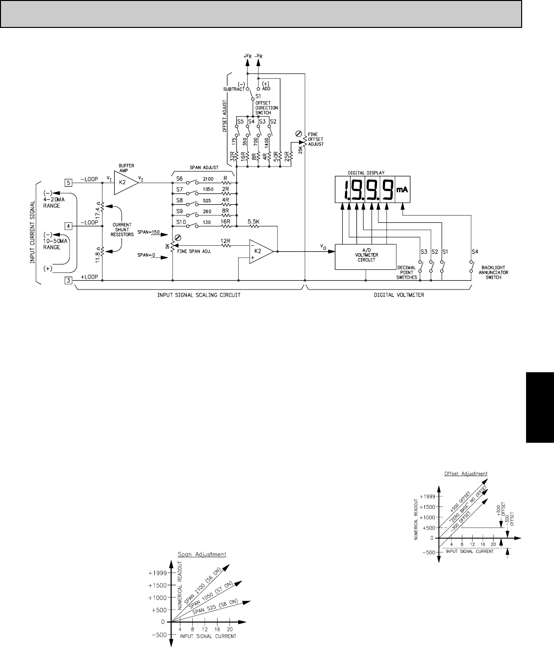
PAXLCL PAX Lite Current Loop Indicator 422
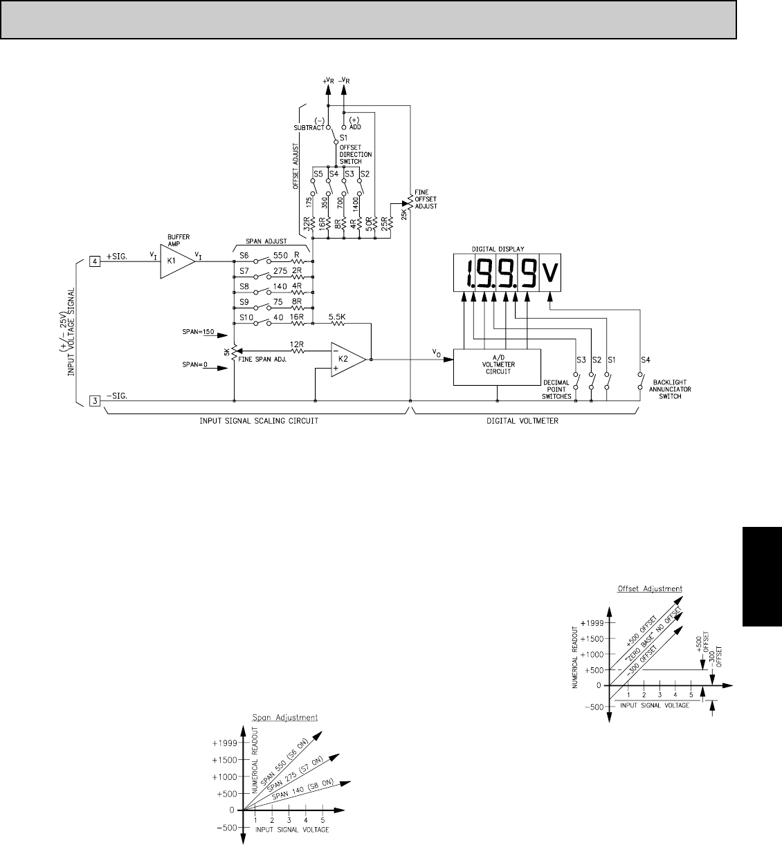
PAXLPV PAX Lite Process Voltmeter 430
DP5P Process Display - Reference Page 438
PAXP PAX Smart Process Meter - Reference Page 439
PAXDP PAX Dual Input Process Meter 440
PAXLSG PAX Lite Strain Gage Indicator 473
PAXS PAX Smart Strain Gage Meter - Reference Page 481
Section F - Temperature Indicators and Controllers
QUICK SPECS 484
REPLACEMENT GUIDE 488
Model Title Page #
CUB5TC Miniature Thermocouple Meter 489
CUB5RT Miniature RTD Meter 501
PAXLTC PAX Lite Thermocouple Indicator 513
PAXLRT PAX Lite RTD Input Indicator 521
PAXLT PAX Lite Universal Temperature Meter 528
DP5T Universal Temperature Display - Reference Page 539
PAXT PAX Smart Temperature Meter - Reference Page 540
T16 Temperature Controller 541
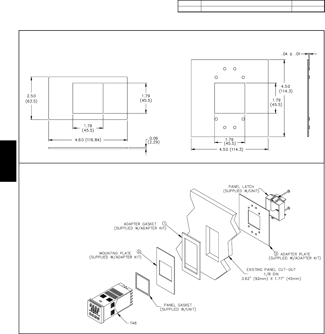
T48 Temperature Controller 566
TCU Temperature Control Unit 574
TSC Temperature Setpoint Control Unit 583
P16 Process Controller - Reference Page 590
P48 Process Controller 591
PCU Process Control Unit 596
PSC Process Setpoint Control Unit 604
TLA Temperature Limit Alarm 611
Section G - Large Displays
QUICK SPECS 626
REPLACEMENT GUIDE 627
Model Title Page #
LD 4 or 6-Digit Large Displays for Count and Rate 629
LDT 6-Digit Large Displays for Timing 645
LDA 5-Digit Large Displays for DC Current, Voltage and Process Inputs 659
LDSS 6-Digit Large Displays for Slave Display Inputs 674
LPAX5 5-Digit Large PAX Displays For Analog Inputs 682
LPAX6 6-Digit Large PAX Displays For Digital Inputs 686
LPAXDA 5-Digit Large PAX Displays For Dual Analog Inputs 690
EPAX5 5-Digit Extra Large PAX Displays For Analog Inputs 694
EPAX6 6-Digit Extra Large PAX Displays For Digital Inputs 700
Section H - Signal Conditioners
QUICK SPECS 708
Model Title Page #
IFMA DIN-Rail Frequency to Analog Converter 713
IFMR DIN-Rail Speed Switch 721
AFCM Analog to Frequency Converter Module 729
IAMS Intelligent Universal Signal Conditioner 731
IAMA Universal Signal Conditioning Module 742
IAMA6 Universal Signal Conditioning Module 750
AAMA Universal Signal Conditioning Module 753
AIMI 0 (4) - 20 mA Passive Loop Powered Isolator 758
APMR Three Phase Fault Detection 759

4 www.redlion.net
IRMA Intelligent RTD Module with Analog Output 763
IRMA DC Intelligent RTD Module with Analog Output 769
ITMA Intelligent Thermocouple Module with Analog Output 775
ITMA DC Intelligent Thermocouple Module with Analog Output 782
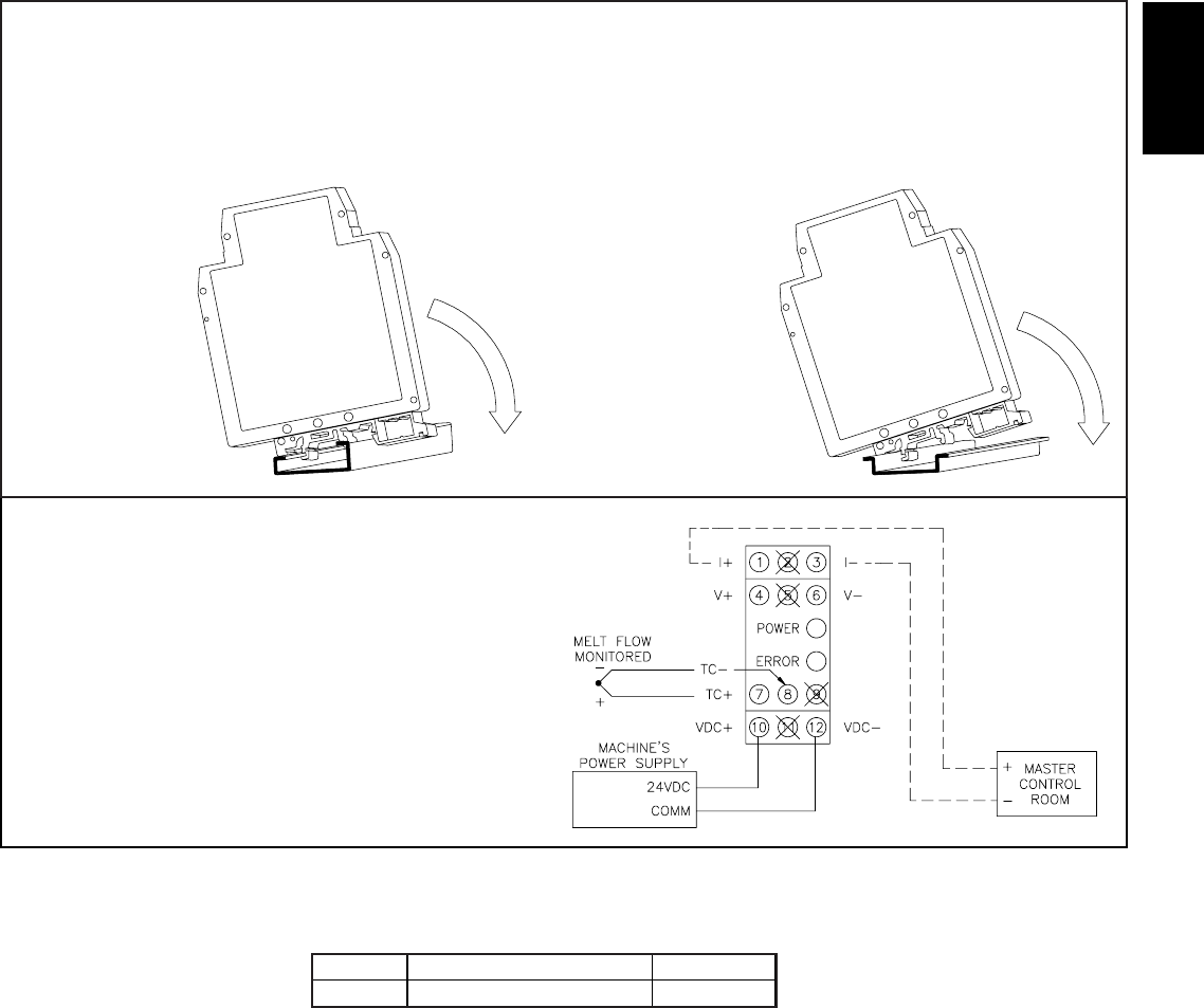
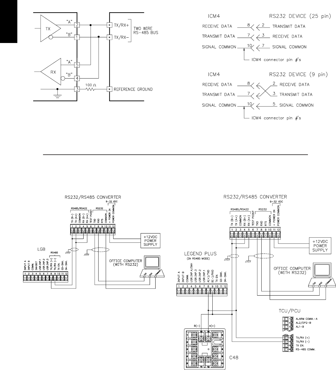
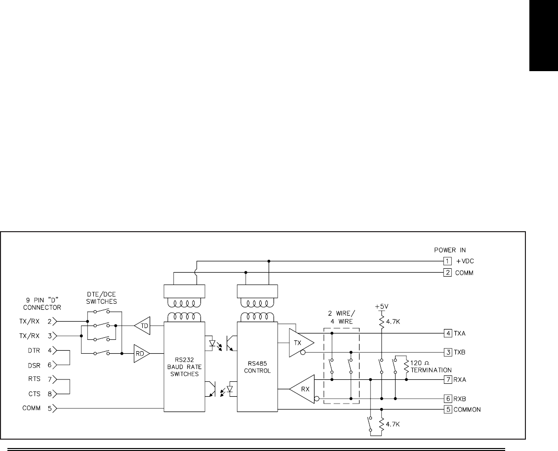
ICM4 Serial Converter Module 788
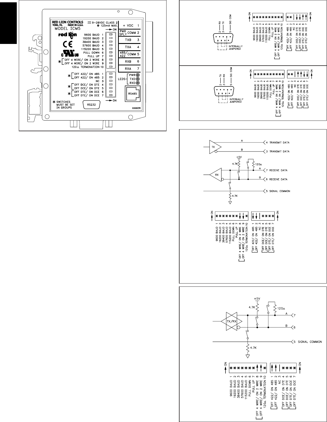
ICM5 3-Way Isolated Serial Converter Module 792
ICM8 Serial to Ethernet Converter Module 796
SWITCH08 Eight Port Ethernet Switch 802
Section I - Sensors
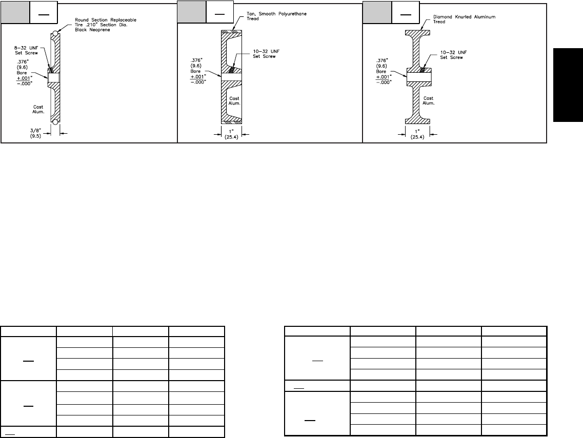
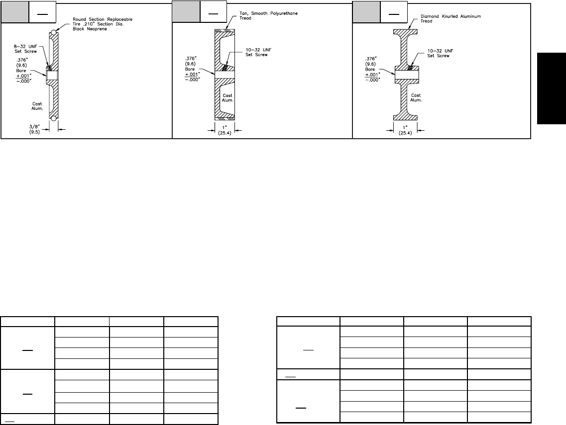
QUICK SPECS 806
Model Title Page #
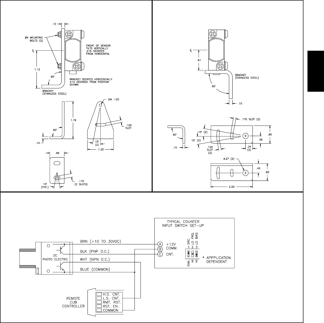
HESS Hall Effect Speed Sensor 813
PSAH Hall Effect Speed Sensor 814
PSA Inductive Proximity Sensors 815
PSAC Inductive Proximity Sensor with Current Sink Output 818
PSAFP Flat Pack Proximity Sensors 819
MPS Magnetic Proximity Switch 822
MP Magnetic Pickups 823
LMP Logic Magnetic Pickups 825
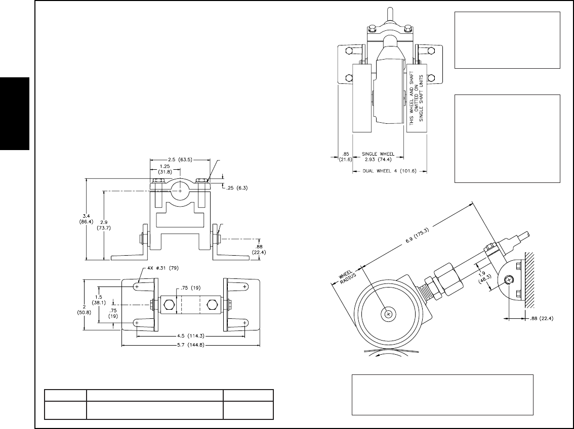
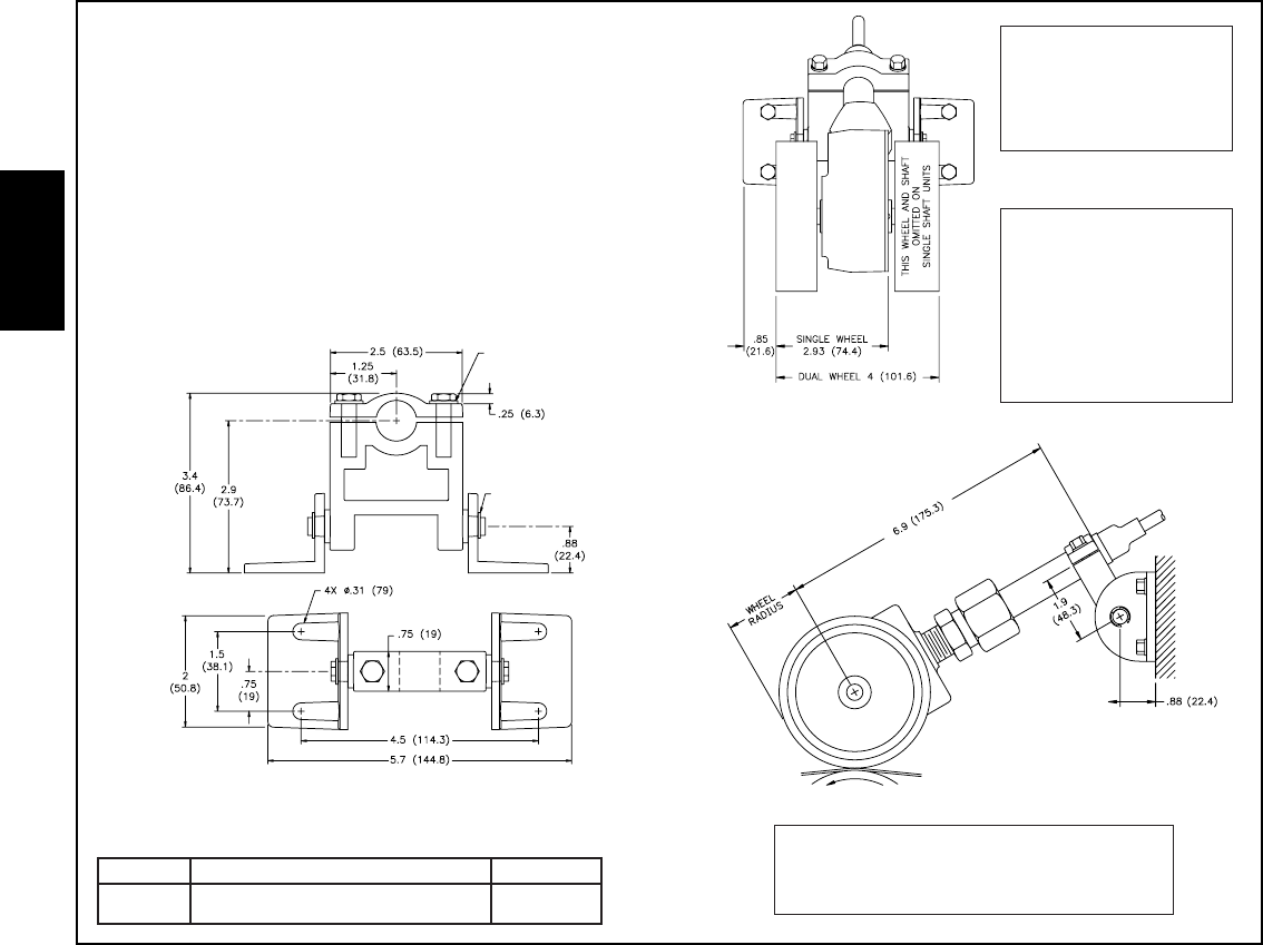
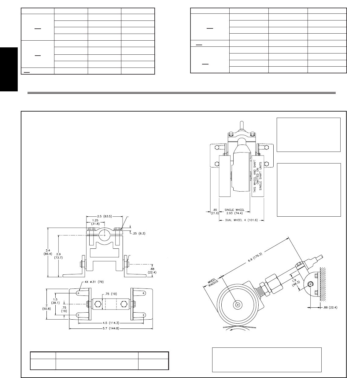
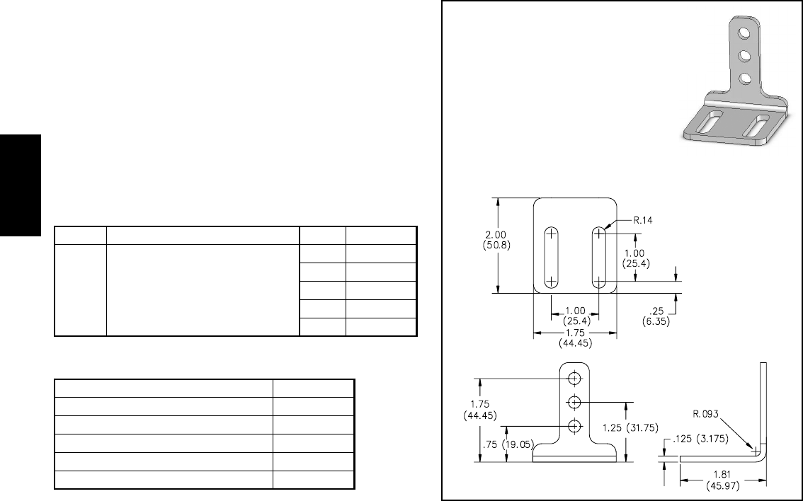
ARCJ NEMA“C” Face-Mounted Motor Adapter Kits 827
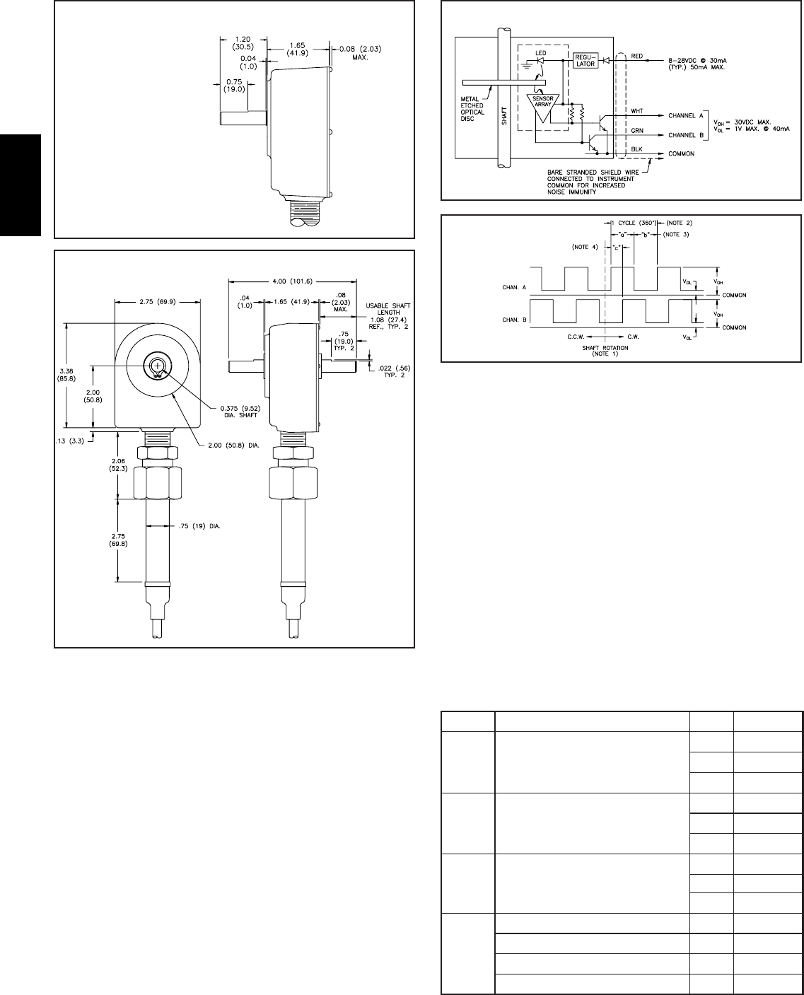
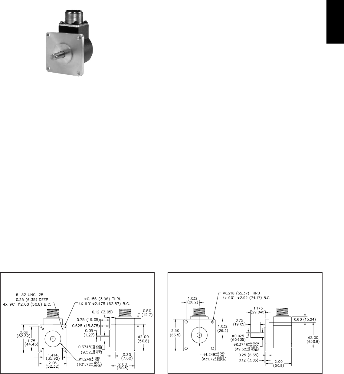
ZR Motor C-Face Encoder w/Line Driver Output 829
GEARS Machined Steel Sensing Gears 831
ZUJ/ZUL Large Thru-Bore Rotary Pulse Generator for Motor Feedback 833
ZR C-Face Encoder w/NPN Open Collector Output 835
ZSD Standared Servo Mount Rotary Pulse Generator 837
ZOD/ZOH Thru-Bore Rotary Pulse Generators 838
ZCG/ZFG/ZGG Single Channel Rotary Pulse Generator and Length Sensor 839
ZCH/ZFH/ZGH Quadrature Rotary Pulse Generator and Length Sensor 843
ZUK Large Thru Bore Rotary Pulse Generator 847
ZPJ Large Thru-Bore Rotary Pulse Generator 849
ZBG/ZBH/ZHG Industrial and Heavy Duty Rotary Pulse Generator 851
ZDH/ZNH Flange Mount Rotary Pulse Generator 855
ZMD Miniature Length Sensor 857
ZLZ Linear Cable Encoder 859
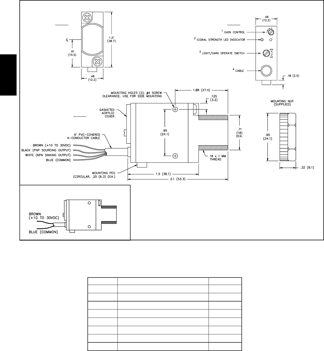
RR/PRDC Compact DC Powered Photo Electric Sensors 861
PRM/RRM Miniature DC Powered Photo Sensors 865
PT Pressure Transmitter 868
TMP Temperature Sensor Probes 869
TMPC High Temperature Thermocouple 871
TMPU Utility Thermocouples 872
TMPB Spring Loaded Compression Fitting Thermocouples 872
TMP Quick Disconnect Temperature Probes and Accessories 873
TMP Transition Joint Probes and Accessories 876
TMPRT/CN RTD Sensors and Connectors 878
TMPT/TMPRN Thermocouple and RTD Connectors with Signal Amplifier 880
CT5 Current Transformer 881
CT4 Current Transformer 882
CTD DC Current Transducer 883
CTL Average Responding AC Current Transducer 885
CTR True RMS AC Current Transducer 887
CTS AC Current Operated Switch 889
Section J - PC Board Mount Displays
QUICK SPECS 892
Model Title Page #
SCUB1 & 2 6-Digit Component Counter 895
SCUB28A 8-Digit Component Counter 896
SCUBD Two Mode Component Counter w/ 6-Digit Display 897

51-717-767-6511
SCUBT 5 1/2-Digit Component Timer/Counter 898
MDMU Component Counter/Timer/Tach 899
MDMV Component DC Voltmeter 900
Section K - Accessories
QUICK SPECS 902
Model Title Page #
PSDR Signal Conditioner 1 2, or 4 A Power Supply 907
APS Octal Plug-In Power Supply 909
APSIS Octal Plug-In Power Supply with 20 mA Source 911
MLPS MicroLine Power Supply 12 and 24 VDC 913
PSMA Power Supply and Interface Module 915
V/T/LCM Signal Converter Modules 917
RS DIN Rail Relay System 920
RLY5 Solid State Power Unit 922
RLY6/6A Single-Phase DIN-Rail Mount Solid State Relay 924
RLY7 Three-Phase DIN-Rail Mount Solid State Relay 926
PAXLBK10 PAX Annunciator Label Kit 928
LX Label LPAX Annunciator Label 929
CUB5USB CUB5 Universal Serial Bus Card 930
CUB5COM CUB5 Serial Communications Card 932
PAXUSB PAX Universal Serial Bus Card 936
PAXCDC PAX Serial Communications Card 938
PAXCDC3 PAX DeviceNet Output Card 944
PAXCDC4 PAX ModBus Output Card 948
PAXCDC5 PAX Profibus Communications Card 954
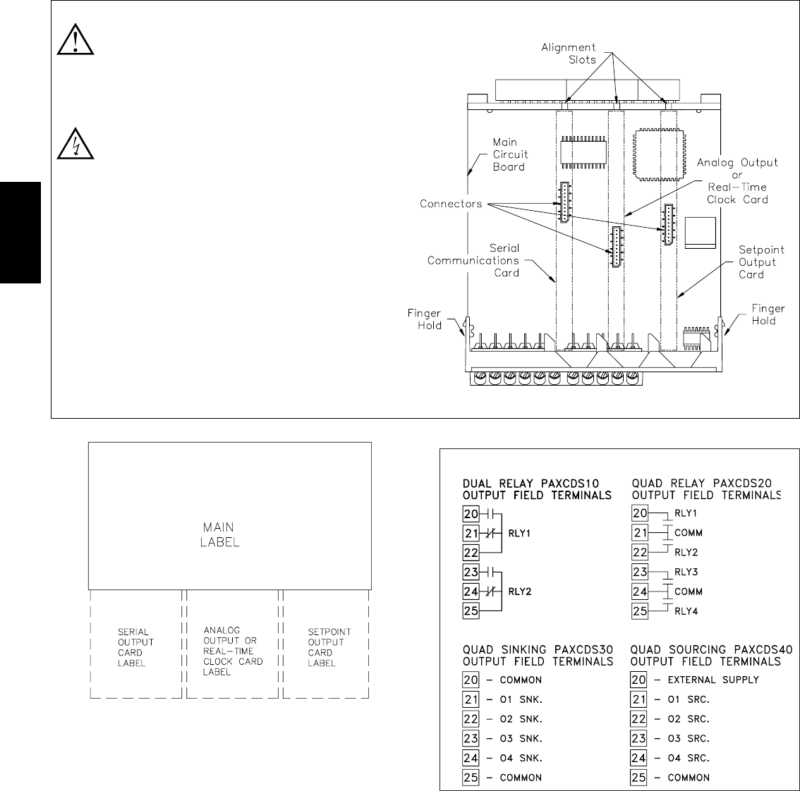
PAXCDS PAX Setpoint Outpoint Card 958
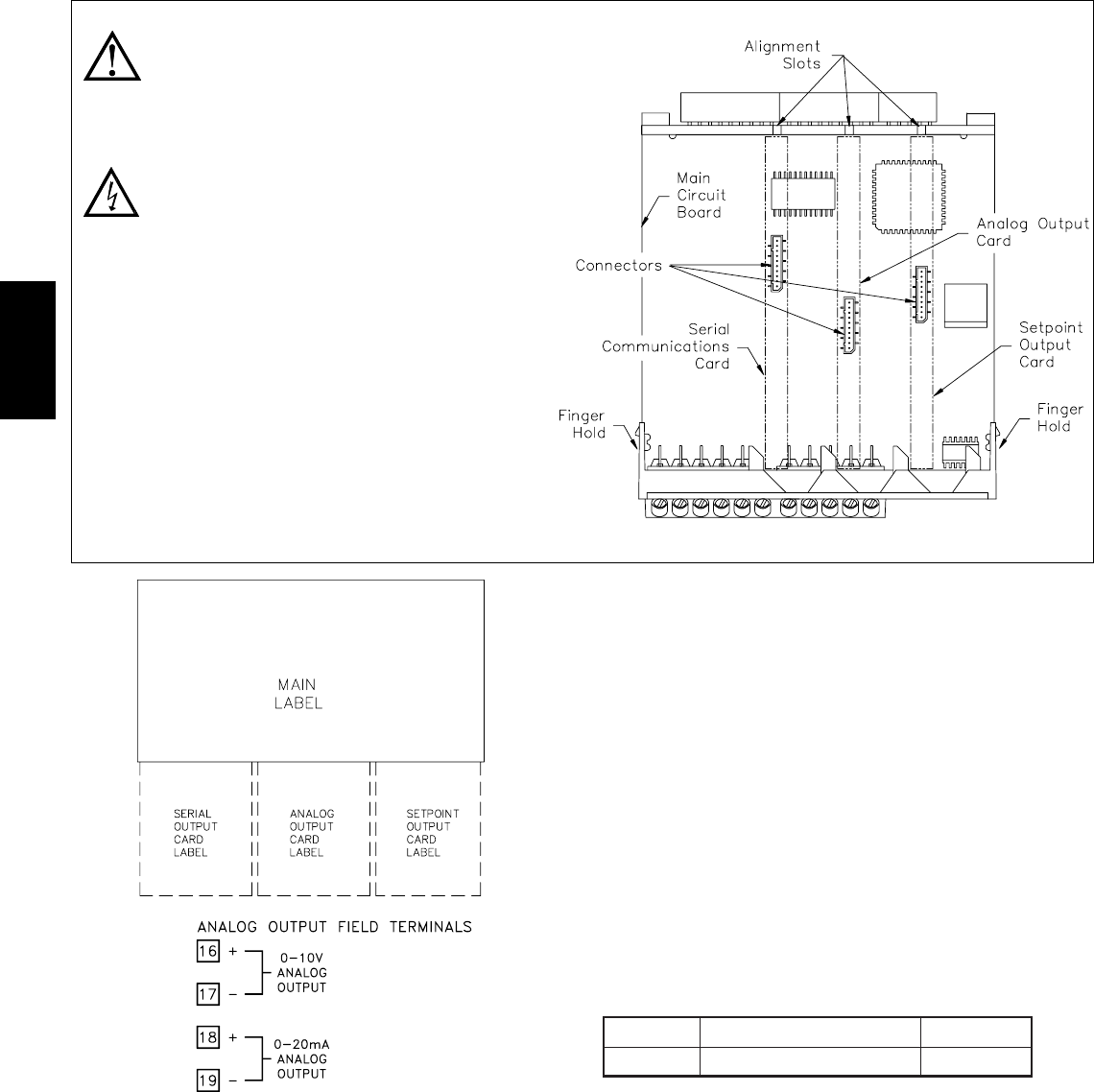
PAXCDL PAX Analog Output Card 962
EMI Installation Notes & Accessories 964
FCOR Ferrite Suppression Core 965
ILS Inductive Load Suppressor 966
SNUB R-C Snubber Noise and Arc Suppressor 967
LFIL General Purpose Line Filter 968
Section L - Enclosures & Panels
Model Title Page #
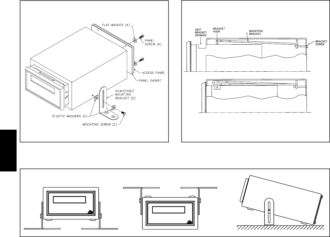
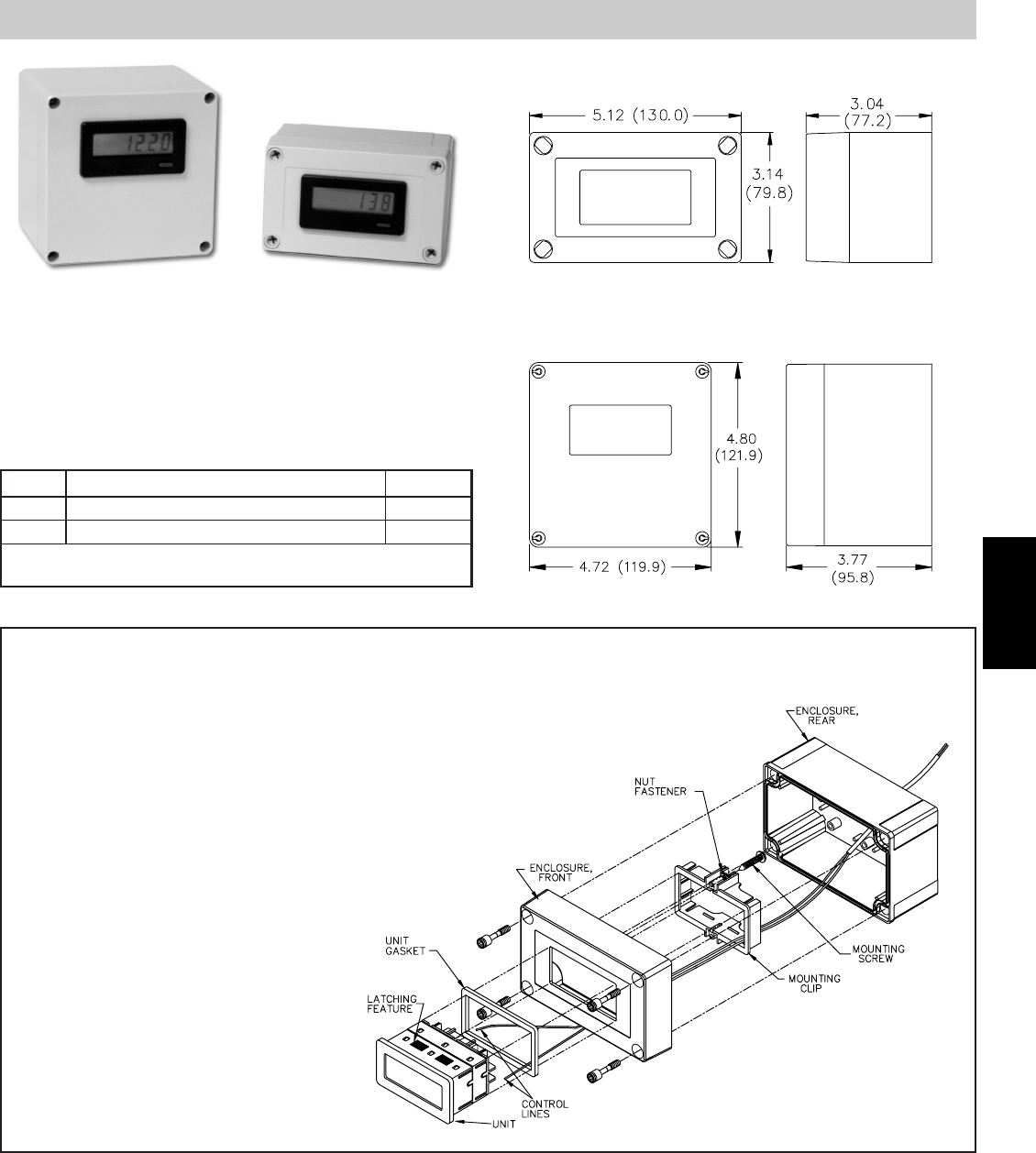
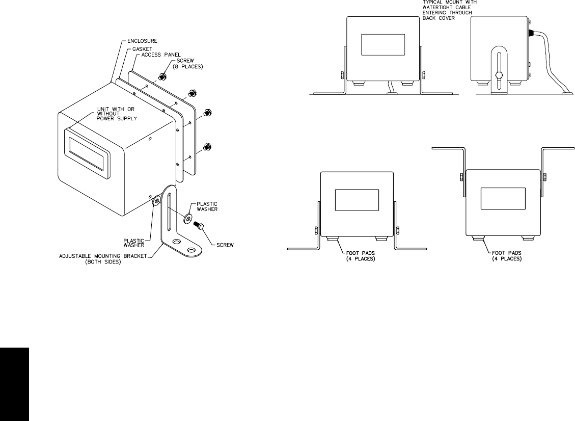
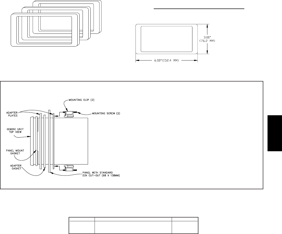
ENC4/5/6 NEMA 4 Enclosures for Legend, Libra, and Gemini 971
ENC5A/B/C NEMA 4 Enclosures for PAX 973
ENC8/A/B NEMA 4 Enclosures for CUB4, CUB5, and DT8 975
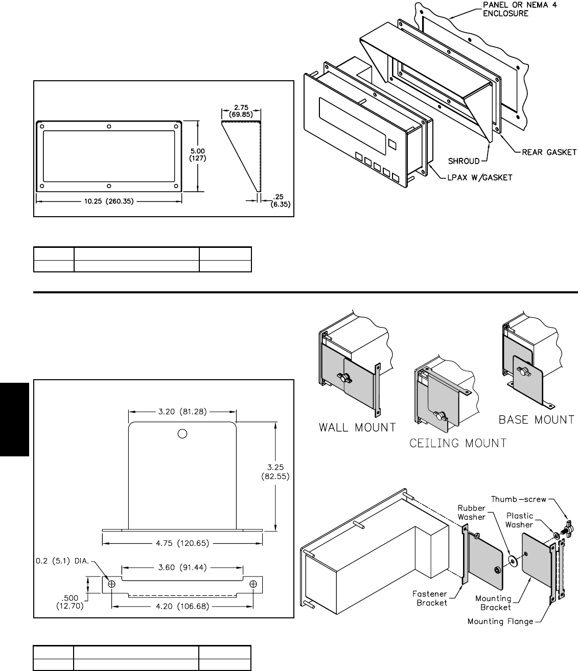
ENC9 LPAX Enclosure/Shroud 979
ENC11 1/16 DIN Enclosure 981
ENC12 EPAX Enclosure/Shroud 983
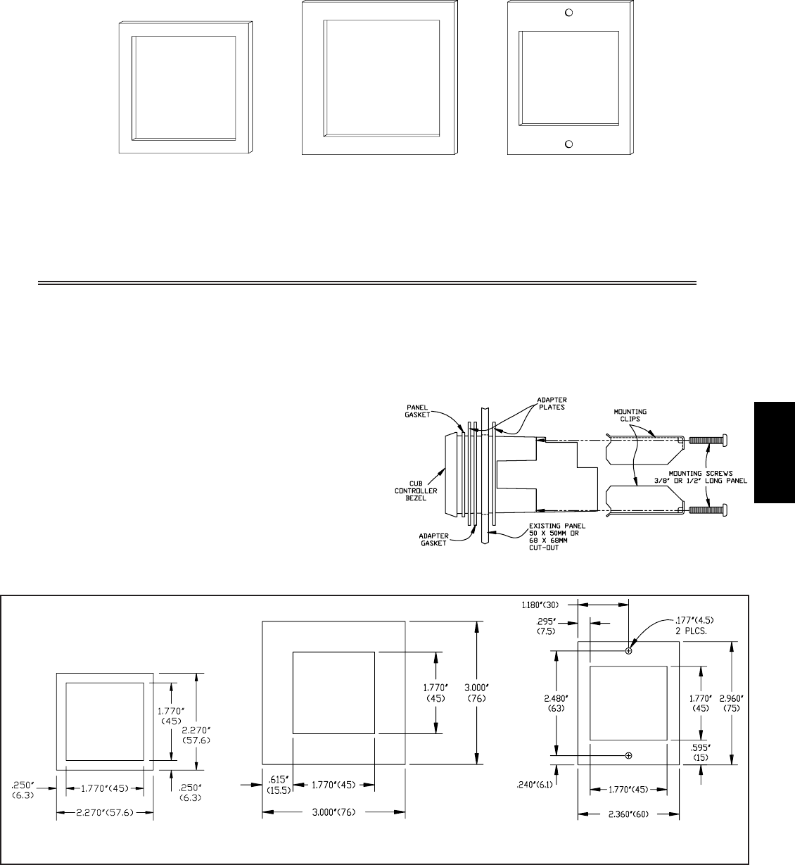
BMK3/4 Base Mount Kit for Legend, Lynx, Libra, C48, T48, T16 and P16 985
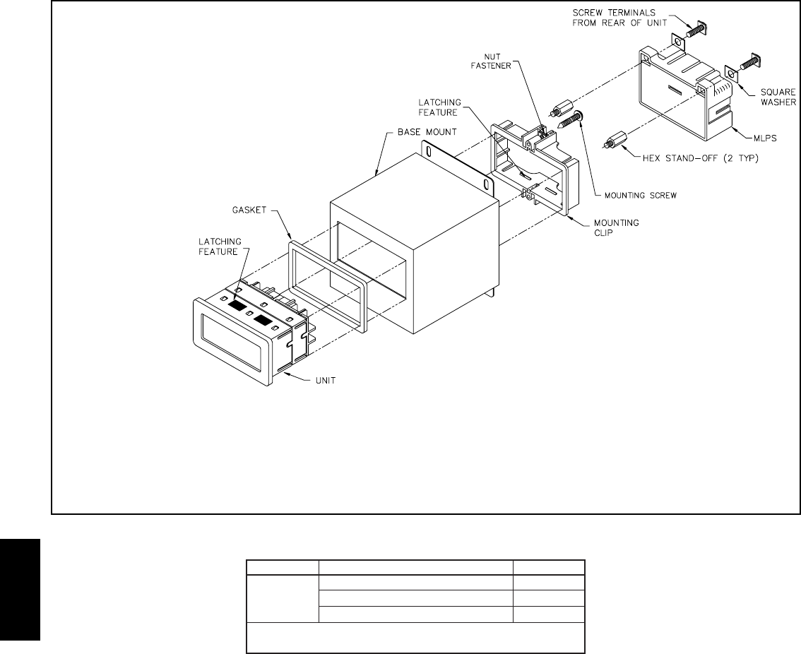
BMK6/7/7A Base Mount Kit for CUB4, CUB5, and DT8 987
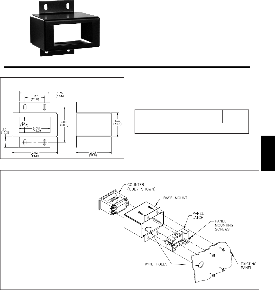
BMK8 Base Mount Kit for CUB7 989
BMK9 DIN Rail PAX Base Mount Kit 990
BMK11 DIN Rail Base Mount Adapter Kit for CUB5 or MLPS 991
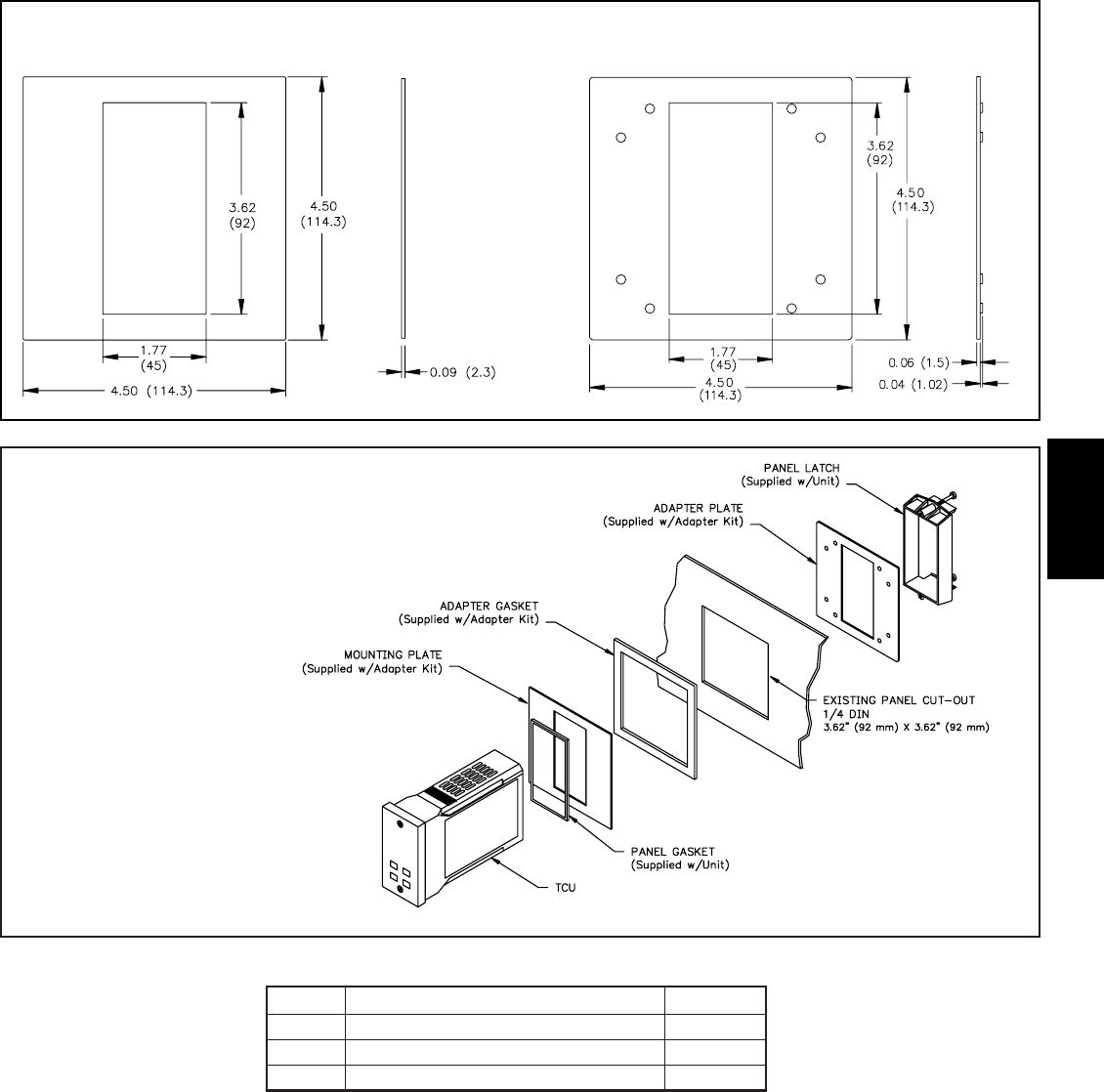
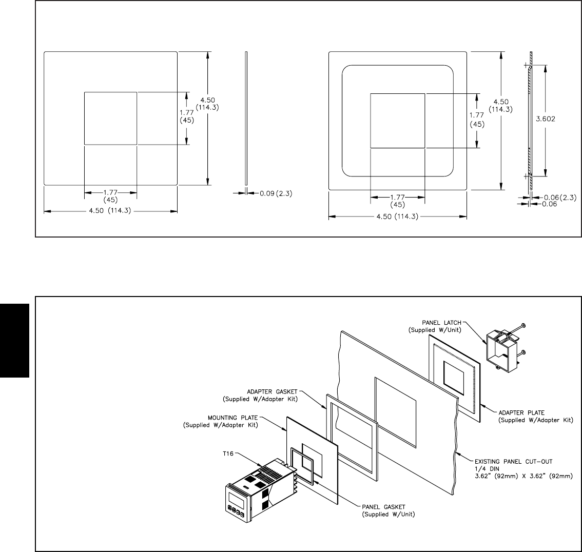
PMK5/7/7A Panel Mount Adapter Kit - 1/4 DIN to 1/8 or 1/16 DIN 993
PMK6 Panel Mount Adapter Kit - 1/8 DIN to 1/16 DIN 996
PMK6A Panel Mount Adapter Kit - 1/8 DIN to CUB5 997
PMK8 Panel Mount Adapter Kit - Gemini to PAX 998
PMKG1 Panel Adapter Kit for GEM 999
PMKA1 Panel Adapter Kit - 1/8 DIN units into cut-outs for older DT3 and SC units 1000
PMKCC Panel Mount Adapter Kit for C48 and T48 1001
Section M - Sensor Wiring Guide 1003
Section N - Part Number Index 1013

6 www.redlion.net
This page intentionally left blank.

71-717-767-6511
CUB7
[pg. 73 ]
DIN: 24mm (H) x 48mm (W)
8-digit, 0.35"
Battery powered
W
CUB7W
[pg. 77 ]
DIN: 24mm (H) x 48mm (W)
8-digit, 0.35"
Voltage input
Battery powered
W
CUB4L
[pg. 98 ]
33mm (H) x 68mm (W)
6-digit, 0.48"
Battery powered
W
CUB4L8
[pg. 98 ]
33mm (H) x 68mm (W)
8-digit, 0.46"
Battery powered
W
CUB4L8W
[pg. 98 ]
33mm (H) x 68mm (W)
8-digit, 0.46"
Voltage input
Battery powered
CUB7P
[pg. 85 ]
DIN: 24mm (H) x 48mm (W)
8-digit, 0.35"
Electronic and
voltage inputs
Battery powered
W
CUB5
[pg. 102 ]
33mm (H) x 68mm (W)
8-digit, 0.46"
Counter/Rate
Optional setpoint
and comms cards
BATCH
CUB5
[pg. 102 ]
33mm (H) x 68mm (W)
8-digit, 0.46"
Counter/Rate
Optional setpoint
and comms cards
W
C48CB
[pg. 178 ]
DIN: 48mm (H) x 48mm (W)
6-digit, 2 line
Main display 0.3"
Secondary 0.2"
1 or 2 Presets
W
LEGEND
[pg. 187 ]
75mm (H) x 75mm (W)
8-digit, 0.3"
2 line
4 Presets
W
LEGEND PLUS
[pg. 193 ]
75mm (H) x 75mm (W)
8-digit, 0.3"
2 line
4 Presets
Message capability
PAXLCR
[pg. 125 ]
DIN: 48mm (H) x 96mm (W)
6-digit, 0.4"
Counter/Rate
Dual Setpoint Capability
W
PAXI
[pg. 169 ]
DIN: 48mm (H) x 96mm (W)
6-digit, 0.56"
Counter/Rate
Optional plug-in
output cards
W
GEM33
[* ]
68mm (H) x 133mm (W)
6-digit, 0.56"
3 Presets; 2
process and
1 batch
W
LD (Batch)
[pg. 629 ]
2.25 or 4",
6-digit Counter/Rate
W
LPAX/MPAXI
[pg. 686 ]
120mm (H) x 254mm (W)
6-digit, 1.5"
Counter/Rate
Optional plug-in
output modules
W
EPAX/MPAXI
[pg. 700 ]
183mm (H) x 629mm (W)
6-digit, 4"
Counter/Rate
Optional plug-in
output modules
LCD LED
SELECTION GUIDE: Counter
PRESETS (OUTPUTS)
CUB5
[pg. 102 ]
33mm (H) x 68mm (W)
8-digit, 0.46"
Counter/Rate
Optional setpoint
and comms cards
W
C48C
[pg. 178 ]
DIN: 48mm (H) x 48mm (W)
6-digit, 2 line
Main display 0.3"
Secondary 0.2"
1 or 2 Presets
W
LEGEND
[pg. 187 ]
75mm (H) x 75mm (W)
8-digit, 0.3"
2 line
1 , 2 or 6 Presets
W
LEGEND PLUS
[pg. 193 ]
75mm (H) x 75mm (W)
8-digit, 0.3"
2 line
6 Presets
Message capability
Foot/Inch counting
W
LIBRA
[ * ]
68mm (H) x 68mm (W)
4-digit, 0.5"
1 or 2 Presets
PAXC
[pg. 137 ]
DIN: 48mm (H) x 96mm (W)
6-digit, 0.56"
Optional setpoint cards
W
PAXLCR
[pg. 125 ]
DIN: 48mm (H) x 96mm (W)
6-digit, 0.4"
Counter/Rate
Dual Setpoint Capability
W
PAXI
[pg. 169 ]
DIN: 48mm (H) x 96mm (W)
6-digit, 0.56"
Counter/Rate
Optional plug-in cards
W
LIBRA
[ * ]
68mm (H) x 68mm (W)
4-digit, 0.4"
1 or 2 Presets
W
GEMINI
[ * ]
68mm (H) x 133mm (W)
6-digit, 0.56"
1 or 2 Presets
Dual counter or
Counter/Rate versions
W
LD
[pg. 629 ]
2.25 or 4",
4-digit Counter
2.25 or 4",
6-digit Counter/Rate
W
EPAX/LPAX/MPAXI
[pg. 700, 686 ]
EPAX: 183mm (H) x 629mm (W)
LPAX: 120mm (H) x 254mm (W)
6-digit, Large Display
Counter/Rate
Optional plug-in modules
LCD LED
PAXLC6/8
[pg. 118 ]
DIN: 48mm (H) x 96mm (W)
6-digit, 0.56"
8-digit, 0.4"
W
PAXLCR
[pg. 125 ]
DIN: 48mm (H) x 96mm (W)
6-digit, 0.4"
Counter/Rate
Dual Setpoint Capability
W
PAXC
[pg. 137 ]
DIN: 48mm (H) x 96mm (W)
6-digit, 0.56"
Optional setpoint
output cards
W
PAXI
[pg. 169 ]
DIN: 48mm (H) x 96mm (W)
6-digit, 0.56"
Counter/Rate
Optional plug-in
output cards
W
LD
[pg. 629 ]
2.25 or 4",
4-digit Counter
2.25 or 4",
6-digit Counter/Rate
W
LPAX/MPAXI
[pg. 686 ]
120mm (H) x 254mm (W)
6-digit, 1.5"
Counter/Rate
Optional plug-in
output modules
W
EPAX/MPAXI
[pg. 700 ]
183mm (H) x 629mm (W)
6-digit, 4"
Counter/Rate
Optional plug-in
output modules
TOTALIZER (NO PRESETS)
LCD LED
WITHOUT SCALING WITH SCALING WITH SCALING
* See website for product information.

8 www.redlion.net
MDC
[pg. 227 ]
Motor Drive
Controller
DIN: 48mm (H) x 48mm (W)
6-digit, 2 line
Main display 0.3"
Secondary 0.2"
1 or 2 Presets
PAXLPT
[pg. 220 ]
Process Time
Indication
DIN: 48mm (H) x 96mm (W)
6-digit, 0.56"
PRESETS (OUTPUTS)
CUB5
[pg. 209 ]
33mm (H) x 68mm (W)
8-digit, 0.46"
Counter/Rate
Optional setpoint
and comms cards
W
LEGEND
[pg. 187 ]
75mm (H) x 75mm (W)
8-digit, 0.3"
2 line
4 Presets
W
LEGEND PLUS
[pg. 193 ]
75mm (H) x 75mm (W)
8-digit, 0.3"
2 line
4 Presets
Message capability
PAXR
[pg. 218 ]
DIN: 48mm (H) x 96mm (W)
6-digit, 0.56"
Optional setpoint
output cards
W
PAXI
[pg. 219 ]
DIN: 48mm (H) x 96mm (W)
6-digit, 0.56"
Counter/Rate
Optional plug-in
output cards
W
GEMINI
[* ]
68mm (H) x 133mm (W)
6-digit, 0.56"
1 or 2 Presets
Dual counter or
Counter/Rate
versions
W
LD
[pg. 629 ]
2.25 or 4",
6-digit Counter/Rate
W
LPAX/MPAXI
[pg. 686 ]
120mm (H) x 254mm (W)
6-digit, 1.5"
Counter/Rate
Optional plug-in
output modules
W
EPAX/MPAXI
[pg. 700 ]
183mm (H) x 629mm (W)
6-digit, 4"
Counter/Rate
Optional plug-in
output modules
LCD LED
SELECTION GUIDE: Rate
INDICATION
DT8
[pg. 205 ]
33mm (H) x 68mm (W)
5-digit, 0.6"
Rate Indicator
W
CUB5
[pg. 209 ]
33mm (H) x 68mm (W)
8-digit, 0.46"
Counter/Rate
Optional setpoint
and comms cards
PAXLR
[pg. 210 ]
DIN: 48mm (H) x 96mm (W)
6-digit, 0.56"
W
PAXLCR
[pg. 217 ]
DIN: 48mm (H) x 96mm (W)
6-digit, 0.4"
Counter/Rate
Dual Setpoint Capability
W
PAXR
[pg. 218 ]
DIN: 48mm (H) x 96mm (W)
8-digit, 0.4"
Optional setpoint
output cards
W
PAXI
[pg. 219 ]
DIN: 48mm (H) x 96mm (W)
6-digit, 0.56"
Counter/Rate
Optional plug-in
output cards
W
LD
[pg. 629 ]
2.25 or 4",
6-digit Counter/Rate
W
LPAX/MPAXI
[pg. 686 ]
120mm (H) x 254mm (W)
6-digit, 1.5"
Counter/Rate
Optional plug-in
output modules
W
EPAX/MPAXI
[pg. 700 ]
183mm (H) x 629mm (W)
6-digit, 4"
Counter/Rate
Optional plug-in
output modules
LCD LED
IFMA
[pg. 713 ]
Frequency to Analog
Converter
DIN rail mount
0-10 V, 4-20 mA
outputs
W
IFMR
[pg. 721 ]
Speed Switch
DIN rail mount
Over or underspeed
outputs
SPECIALTY
LCD LED NO DISPLAY
* See website for product information.

91-717-767-6511
SELECTION GUIDE: Timer
CUB7T
[pg. 237 ]
DIN: 24mm (H) x 48mm (W)
8-digit, 0.35"
Contact and
voltage versions
W
CUB5T
[pg. 249 ]
33mm (H) x 68mm (W)
7-digit, 0.46"
Optional setpoint and
comms cards
PAXTM
[pg. 268 ]
DIN: 48mm (H) x 96mm (W)
6-digit, 0.56"
Optional plug-in
output cards
W
LDT
[pg. 645 ]
2.25 or 4",
6-digit
Setpoint and comms
capability
W
LPAXCK/MPAXTM
[pg. 686 ]
120mm (H) x 254mm (W)
6-digit, 1.5"
Optional plug-in
output modules
W
EPAX/MPAXTM
[pg. 700 ]
183mm (H) x 629mm (W)
6-digit, 4"
Optional plug-in
output modules
INDICATION
LCD LED
C48T
[pg. 263]
DIN: 48mm (H) x 96mm (W)
6-digit, 2 line
Main display 0.3"
Secondary 0.2"
1 or 2 Presets
W
LIBRA
[ * ]
68mm (H) x 68mm (W)
4-digit, 0.5"
1 or 2 Presets
PAXTM
[pg. 268 ]
DIN: 48mm (H) x 96mm (W)
6-digit, 0.56"
Optional plug-in
output cards
W
LIBRA
[ * ]
68mm (H) x 68mm (W)
4-digit, 0.4"
1 or 2 Presets
W
LDT
[pg. 645 ]
2.25 or 4",
6-digit
Setpoint and comms
capability
W
LPAXCK/MPAXTM
[pg. 686 ]
120mm (H) x 254mm (W)
6-digit, 1.5"
Optional plug-in
output modules
W
EPAX/MPAXTM
[pg. 700 ]
183mm (H) x 629mm (W)
6-digit, 4"
Optional plug-in
output modules
PRESETS (OUTPUTS)
LCD LED
PAXCK
[pg. 296 ]
DIN: 48mm (H) x 96mm (W)
6-digit, 0.56"
Optional plug-in
output cards
W
LPAXCK/MPAXCK
[pg. 686 ]
120mm (H) x 254mm (W)
6-digit, 1.5"
Optional plug-in
output modules
W
EPAX/MPAXCK
[pg. 700 ]
183mm (H) x 629mm (W)
6-digit, 4"
Optional plug-in
output modules
REAL-TIME CLOCK
LED
* See website for product information.

10 www.redlion.net
DC
CUB 4I
[ * ]
33mm (H) x 68mm (W)
3 1/2-digit, 0.6"
Counter/Rate
199.9 mA DC max
W
CUB5I
[pg. 317 ]
33mm (H) x 68mm (W)
5-digit, 0.46"
Optional setpoint
and comms cards
W
PAXLID
[pg. 329 ]
DIN: 48mm (H) x 96mm (W)
3 1/2-digit, 0.56"
1.999 Amp DC max
W
PAXLA
[pg. 347 ]
DIN: 48mm (H) x 96mm (W)
5-digit, 0.56"
Dual Setpoint Capability
W
PAXD
[pg. 378 ]
DIN: 48mm (H) x 96mm (W)
5-digit, 0.56"
Current/Volt
2 Amp DC max
Optional plug-in
output cards
W
LDA
[pg. 659 ]
5-digit, 2.25 or 4"
Setpoint and comms
capability
W
LPAX/MPAXD
[pg. 682 ]
120mm (H) x 254mm (W)
5-digit, 1.5"
Current/Volt
2 Amp DC max
Optional plug-in
output modules
W
EPAX/MPAXD
[pg. 694 ]
183mm (H) x 629mm (W)
5-digit, 4"
Current/Volt
2 Amp DC max
Optional plug-in
output modules
CUB 4V
[ * ]
33mm (H) x 68mm (W)
3 1/2-digit, 0.6"
Counter/Rate
199.9 VDC max
W
CUB5V
[pg. 305 ]
33mm (H) x 68mm (W)
5-digit, 0.46"
Optional setpoint
and comms cards
W
PAXLVD
[pg. 329 ]
DIN: 48mm (H) x 96mm (W)
3 1/2-digit, 0.56"
300 VDC max
W
PAXLA
[pg. 347 ]
DIN: 48mm (H) x 96mm (W)
5-digit, 0.56"
Dual Setpoint Capability
W
PAXD
[pg. 378 ]
DIN: 48mm (H) x 96mm (W)
5-digit, 0.56"
Current/Volt
300 VDC max
Optional plug-in
output cards
W
LDA
[pg. 659 ]
5-digit, 2.25 or 4"
Setpoint and comms
capability
W
LPAX/MPAXD
[pg. 682 ]
120mm (H) x 254mm (W)
5-digit, 1.5"
Current/Volt
300 VDC max
Optional plug-in
output modules
W
EPAX/MPAXD
[pg. 694 ]
183mm (H) x 629mm (W)
5-digit, 4"
Current/Volt
300 VDC max
Optional plug-in
output modules
CURRENT VOLTAGE
AC
PAXLIA
[pg. 329 ]
DIN: 48mm (H) x 96mm (W)
3 1/2-digit, 0.56"
1.999 Amp AC max
W
PAXLIT
[pg. 336 ]
DIN: 48mm (H) x 96mm (W)
3 1/2-digit, 0.56"
5 Amp AC max
W
PAXH
[pg. 405 ]
DIN: 48mm (H) x 96mm (W)
5-digit, 0.56"
Current/Volt
5 Amp AC max
Optional plug-in
output cards
W
LPAX/MPAXH
[pg. 682 ]
120mm (H) x 254mm (W)
5-digit, 1.5"
Current/Volt
5 Amp AC max
Optional plug-in
output modules
W
EPAX/MPAXH
[pg. 694 ]
183mm (H) x 629mm (W)
5-digit, 4"
Current/Volt
5 Amp AC max
Optional plug-in
output modules
PAXLVA
[pg. 329 ]
DIN: 48mm (H) x 96mm (W)
3 1/2-digit, 0.56"
300 VAC max
W
PAXLHV
[pg. 342 ]
DIN: 48mm (H) x 96mm (W)
3 1/2-digit, 0.56"
600 VAC max
W
PAXH
[pg. 405 ]
DIN: 48mm (H) x 96mm (W)
5-digit, 0.56"
Current/Volt
300 VAC max
Optional plug-in
output cards
W
LPAX/MPAXH
[pg. 682 ]
120mm (H) x 254mm (W)
5-digit, 1.5"
Current/Volt
300 VAC max
Optional plug-in
output modules
W
EPAX/MPAXH
[pg. 694 ]
183mm (H) x 629mm (W)
5-digit, 4"
Current/Volt
300 VAC max
Optional plug-in
output modules
PROCESS
CUB4CL/LP
[pg. 406 ]
33mm (H) x 68mm (W)
3 1/2-digit, 0.6"
4-20 mA or 10-50 mA
Loop powered
W
CUB5P
[pg. 410 ]
33mm (H) x 68mm (W)
5-digit, 0.46"
Optional setpoint
and comms cards
W
PAXLCL
[pg. 422 ]
DIN: 48mm (H) x 96mm (W)
3 1/2-digit, 0.56"
4-20 mA or 10-50 mA
W
PAXLA
[pg. 347 ]
DIN: 48mm (H) x 96mm (W)
5-digit, 0.56"
Dual Setpoint Capability
W
PAXP (Single Loop)
[pg. 439 ]
PAXDP (Dual Loop)
[pg. 440 ]
DIN: 48mm (H) x 96mm (W)
5-digit, 0.56"
4-20 mA or 10-50 mA
Dual inputs (PAXDP)
Optional plug-in cards
W
LDA
[pg. 659 ]
5-digit, 2.25 or 4"
Setpoint and comms
capability
W
LPAX/MPAXP
[pg. 682 ]
LPAXDA/MPAXDP
[pg. 690 ]
120mm (H) x 254mm (W)
5-digit, 1.5"
4-20 mA or 10-50 mA
Dual inputs (LPAXDA/MPAXDP)
Optional plug-in modules
W
EPAX/MPAXP
[pg. 694 ]
183mm (H) x 629mm (W)
5-digit, 4"
4-20 mA or 10-50 mA
Optional plug-in modules
CUB5P
[pg. 410 ]
33mm (H) x 68mm (W)
5-digit, 0.46"
Optional setpoint
and comms cards
W
PAXLPV
[pg. 430 ]
DIN: 48mm (H) x 96mm (W)
3 1/2-digit, 0.56"
1-5 VDC
W
PAXLA
[pg. 347 ]
DIN: 48mm (H) x 96mm (W)
5-digit, 0.56"
Dual Setpoint Capability
W
PAXP (Single Loop)
[pg. 439 ]
PAXDP (Dual Loop)
[pg. 440 ]
DIN: 48mm (H) x 96mm (W)
5-digit, 0.56"
0-10 VDC
Dual inputs (PAXDP)
Optional plug-in
output cards
W
LDA
[pg. 659 ]
5-digit, 2.25 or 4"
Setpoint and comms
capability
W
LPAX/MPAXP
[pg. 682 ]
LPAXDA/MPAXDP
[pg. 690 ]
120mm (H) x 254mm (W)
5-digit, 1.5"
0-10 VDC
Dual inputs (LPAXDA/MPAXDP)
Optional plug-in
output modules
W
EPAX/MPAXP
[pg. 694 ]
183mm (H) x 629mm (W)
5-digit, 4"
0-10 VDC
Optional plug-in
output modules
PAXLSG
[pg. 473 ]
DIN: 48mm (H) x 96mm (W)
3 1/2-digit, 0.56"
Single-ended or
differential 2 V max
W
PAXS
[pg. 481 ]
DIN: 48mm (H) x 96mm (W)
5-digit, 0.56"
24 or 240 mV DC
Optional plug-in
output cards
W
LPAX/MPAXS
[pg. 682 ]
120mm (H) x 254mm (W)
5-digit, 1.5"
240 mV DC max
Optional plug-in
output modules
W
EPAX/MPAXS
[pg. 694 ]
183mm (H) x 629mm (W)
5-digit, 4"
240 mV DC max
Optional plug-in
output modules
CURRENT VOLTAGE CURRENT VOLTAGE
STRAIN GAGE
(microvoltmeter)
SELECTION GUIDE: Digital Panel Meter
* See website for product information.

111-717-767-6511
SELECTION GUIDE: Temperature/Process
CUB4RT
[* ]
33mm (H) x 68mm (W)
5-digit, 0.48"
Pt392, Pt385,
Ni672, and Cu427
W
CUB5TC
[pg. 489 ]
33mm (H) x 68mm (W)
5-digit, 0.46"
T, E, J, K, R, S, B,
N, and mV
Optional setpoint and
comms cards
W
CUB5RT
[pg. 501 ]
33mm (H) x 68mm (W)
5-digit, 0.46"
Pt392, Pt385,
Ni672, and Cu427
Optional setpoint and
comms cards
W
PAXLT
[pg. 528 ]
DIN: 48mm (H) x 96mm (W)
5-digit, 0.56"
Dual Setpoint
Capability
PAXLTC
[pg. 513 ]
DIN: 48mm (H) x 96mm (W)
4-digit, 0.56"
T, E, J, K, R, S, B,
N, and mV
W
PAXLRT
[pg. 521 ]
DIN: 48mm (H) x 96mm (W)
4-digit, 0.56"
Pt392, Pt385
W
PAXLT
[pg. 528 ]
DIN: 48mm (H) x 96mm (W)
5-digit, 0.56"
Dual Setpoint Capability
W
LPAX/MPAXT
[pg. 682 ]
120mm (H) x 254mm (W)
5-digit, 1.5"
T, E, J, K, R, S, B,
N, and mV
Optional plug-in
output modules
W
EPAX/MPAXT
[pg. 694 ]
183mm (H) x 629mm (W)
6-digit, 4"
T, E, J, K, R, S, B,
N, and mV
Optional plug-in
output modules
CUB5TC
[pg. 489 ]
33mm (H) x 68mm (W)
5-digit, 0.46"
T, E, J, K, R, S, B,
N, and mV
Optional setpoint and
comms cards
W
CUB5RT
[pg. 501 ]
33mm (H) x 68mm (W)
5-digit, 0.46"
Pt392, Pt385,
Ni672, and Cu427
Optional setpoint and
comms cards
W
PAXT
[pg. 540 ]
DIN: 48mm (H) x 96mm (W)
6-digit, 0.56"
T, E, J, K, R, S, B,
N, and mV
Optional plug-in
output cards
W
LPAX/MPAXT
[pg. 682 ]
120mm (H) x 254mm (W)
5-digit, 1.5"
T, E, J, K, R, S, B,
N, and mV
Optional plug-in
output modules
W
EPAX/MPAXT
[pg. 694 ]
183mm (H) x 629mm (W)
6-digit, 4"
T, E, J, K, R, S, B,
N, and mV
Optional plug-in
output modules
TEMPERATURE PROCESS
INDICATORS
LCD LED
ON/OFF
CONTROL
T16
[pg. 541 ]
DIN: 48mm (H) x 48mm (W)
4-digit, 0.3"
2 line
W
T48
[pg. 566 ]
DIN: 48mm (H) x 48mm (W)
4-digit, 0.3"
2 line
W
TCU
[pg. 574 ]
DIN: 96mm (H) x 48mm (W)
4-digit, 2 line
Main display 0.4"
Secondary 0.3"
W
TSC
[pg. 583 ]
DIN: 96mm (H) x 48mm (W)
4-digit, 2 line
Main display 0.4"
Secondary 0.3"
Ramp/Soak
PID
CONTROL
CUB5P
[pg. 410 ]
33mm (H) x 68mm (W)
5-digit, 0.46"
Optional setpoint
and comms cards
W
PAXP
[pg. 439 ]
DIN: 48mm (H) x 96mm (W)
5-digit, 0.56"
4-20 mA or 10-50 mA
Optional plug-in cards
W
PAXDP
[pg. 440 ]
DIN: 48mm (H) x 96mm (W)
5-digit, 0.56"
4-20 mA or 10-50 mA
Dual inputs
Optional plug-in cards
W
LPAX/MPAXP
[pg. 682 ]
120mm (H) x 254mm (W)
5-digit, 1.5"
4-20 mA or 10-50 mA
Optional plug-in modules
W
LPAXDA/MPAXDP
[pg. 690 ]
120mm (H) x 254mm (W)
5-digit, 1.5"
4-20 mA or 10-50 mA
Dual inputs
Optional plug-in modules
W
EPAX/MPAXP
[pg. 694 ]
183mm (H) x 629mm (W)
5-digit, 4"
4-20 mA or 10-50 mA
Optional plug-in modules
ON/OFF
CONTROL
P16
[pg. 590 ]
DIN: 48mm (H) x 48mm (W)
4-digit, 0.3"
2 line
W
P48
[pg. 591 ]
DIN: 48mm (H) x 48mm (W)
4-digit, 0.3"
2 line
W
PCU
[pg. 596 ]
DIN: 96mm (H) x 48mm (W)
4-digit, 2 line
Main display 0.4"
Secondary 0.3"
W
PSC
[pg. 604 ]
DIN: 96mm (H) x 48mm (W)
4-digit, 2 line
Main display 0.4"
Secondary 0.3"
Ramp/Soak
PID
CONTROL
* See website for product information.

12 www.redlion.net
DIN RAIL
SELECTION GUIDE: Signal Conditioning
IAMA
[pg. 742 ]
Universal Signal
Conditioning module
Inputs and Outputs are
Switch Selectable
9-32 VDC Powered
W
IAMS
[pg. 731 ]
Universal Signal
Conditioning Module
Programmable Inputs
and Outputs
Dual Setpoint Control
21.6-253 VAC or
19.2-300 VDC Powered
Removable Programming
Module
W
IAMA6
[pg. 750 ]
Universal Signal
Conditioning module
Inputs and Outputs are
Switch Selectable
19.2-32 VDC Powered
6.2 mm Wide
W
AAMA
[pg. 753 ]
Universal Signal
Conditioning module
Inputs and Outputs are
Switch Selectable
18-32 VDC Powered
Negative Signal Inputs
W
AIMI
[pg. 758 ]
Loop Powered
0-20 or 4-20 mA
Input/Output Isolation
PROCESS
IAMS
[pg. 731 ]
Universal Signal
Conditioning Module
Programmable Inputs
and Outputs
Dual Setpoint Control
21.6-253 VAC or
19.2-300 VDC Powered
Removable Programming
Module
W
ITMA
[pg. 775 ]
Accepts Thermocouple
Types J, K, T, & E or
Millivolt Input
12-42 VDC
Loop Powered
Adjustable Range Setting
W
ITMA DC
[pg. 782 ]
Accepts Thermocouple
Types J, K, T, & E or
Millivolt Input
9-32 VDC
Adjustable Range Setting
W
IRMA
[pg. 760 ]
Accepts RTD Inputs
12-42 VDC
Loop Powered
Adjustable Range Setting
W
IRMA DC
[pg. 769 ]
Accepts RTD Inputs
9-32 VDC
Adjustable Range Setting
TEMPERATURE
AFCM
[pg. 729 ]
Analog to Frequency Converter
Universal Input to Output
3-Way Isolation
19-30 VDC Powered
W
IFMA
[pg. 713 ]
Frequency to Analog Converter
0-10 V, 4-20 mA Output
1 to 25 KHz Input
On-Line Range Setting
W
IFMR
[pg. 721 ]
Speed Switch
Settable Trip Frequency
Over Speed, Under Speed,
and Zero-Speed Detection
Form C Relay Output
FREQUENCY
ICM4
[pg. 788 ]
RS-232 to RS-485
RS-232 to RS-422
4800-19200 Baud
9-32 VDC Powered
W
ICM5
[pg. 792 ]
RS-232 to RS-485
RS-232 to RS-422
4800-19200 Baud
9-32 VDC Powered
Three Way Isolation
W
ICM8
[pg. 796 ]
Serial to Ethernet Converter
RS-232 or RS-485 from
Red Lion products only
24 VDC Powered
W
SWITCH08
[pg. 802 ]
Unmanaged Switch
Requires No Configuration
Supports 10/100 MDPS
Network
Half/Full Duplex Negotiation
Auto-Crossing Detection
COMMUNICATIONS
PSDR1
[pg. 907 ]
24 VDC @ 1 A
Input 85-264 VAC or
90-350 VDC
CE Approved
UL Listed
W
PSDR2
[pg. 907 ]
24 VDC @ 2 A
Input 85-264 VAC or
90-350 VDC
CE Approved
UL Listed
W
PSDR4
[pg. 907 ]
24 VDC @ 4 A
Input 85-264 VAC or
90-350 VDC
CE Approved
UL Listed
POWER SUPPLIES
APMR
[pg. 759 ]
3 Phase Fault Detector
230, 380, & 480 VAC
Modules
SPDT Relay Output
OTHER MODULES
* See website for product information.

131-717-767-6511
SELECTION GUIDE: Large Displays
LD2
[pg. 629 ]
2.25" LED Display
AC or DC Powered
NEMA 4X Case
Setpoint and comms
capability
W
LD4
[pg. 629 ]
4" LED Display
AC or DC Powered
NEMA 4X Case
Setpoint and comms
capability
W
LPAX06/MPAXC
[pg. 686 ]
1.5" LED Display
AC or DC Powered
Accepts various PAX
input modules
Optional plug-in
output modules
W
EPAX06/MPAXC
[pg. 700 ]
4" LED Display
AC Powered
Accepts various PAX
input modules
Optional plug-in
output modules
W
LPAX06 /MPAXI
[pg. 686 ]
1.5" LED Display
AC or DC Powered
Accepts various PAX
input modules
Optional plug-in
output modules
W
EPAX06/MPAXI
[pg. 700 ]
4" LED Display
AC or DC Powered
Accepts various PAX
input modules
Optional plug-in
output modules
COUNT
LD2
[pg. 629 ]
2.25" LED Display
AC or DC Powered
NEMA 4X Case
Setpoint and comms
capability
W
LD4
[pg. 629 ]
4" LED Display
AC or DC Powered
NEMA 4X Case
Setpoint and comms
capability
W
LPAX06/MPAXR
[pg. 686 ]
1.5" LED Display
AC or DC Powered
Accepts various PAX
input modules
Optional plug-in
output modules
W
EPAX06/MPAXR
[pg. 700 ]
4" LED Display
AC Powered
Accepts various PAX
input modules
Optional plug-in
output modules
W
LPAX06/MPAXI
[pg. 686 ]
1.5" LED Display
AC or DC Powered
Accepts various PAX
input modules
Optional plug-in
output modules
W
EPAX06/MPAXI
[pg. 700 ]
4" LED Display
AC Powered
Accepts various PAX
input modules
Optional plug-in
output modules
RATE
LD2T
[pg. 645 ]
2.25" LED Display
AC or DC Powered
NEMA 4X Case
Setpoint and comms
capability
W
LD4T
[pg. 645 ]
4" LED Display
AC or DC Powered
NEMA 4X Case
Setpoint and comms
capability
W
LPAX06/MPAXTM
[pg. 686 ]
1.5" LED Display
AC or DC Powered
Accepts various PAX
input modules
Optional plug-in
output modules
W
EPAX06/MPAXTM
[pg. 700 ]
4" LED Display
AC Powered
Accepts various PAX
input modules
Optional plug-in
output modules
W
LPAX06/MPAXCK
[pg. 686 ]
1.5" LED Display
AC or DC Powered
Accepts various PAX
input modules
Optional plug-in
output modules
W
EPAX06/MPAXCK
[pg. 700 ]
4" LED Display
AC Powered
Accepts various PAX
input modules
Optional plug-in
output modules
TIME/CLOCK
LPAX05/MPAXH
[pg. 682 ]
1.5" LED Display
AC or DC Powered
Accepts various PAX
input modules
Optional plug-in
output modules
W
EPAX05/MPAXH
[pg. 694 ]
4" LED Display
AC Powered
Accepts various PAX
input modules
Optional plug-in
output modules
AC CURRENT
AC VOLTAGE
LD2A
[pg. 659 ]
2.25" LED Display
AC or DC Powered
NEMA 4X Case
Setpoint and comms
capability
W
LD4A
[pg. 659 ]
4" LED Display
AC or DC Powered
NEMA 4X Case
Setpoint and comms
capability
W
LPAX05/MPAXD
[pg. 682 ]
1.5" LED Display
AC or DC Powered
Accepts various PAX
input modules
Optional plug-in
output modules
W
EPAX05/MPAXD
[pg. 694 ]
4" LED Display
AC Powered
Accepts various PAX
input modules
Optional plug-in
output modules
DC CURRENT
DC VOLTAGE
LD2A
[pg. 659 ]
2.25" LED Display
AC or DC Powered
NEMA 4X Case
Setpoint and comms
capability
W
LD4A
[pg. 659 ]
4" LED Display
AC or DC Powered
NEMA 4X Case
Setpoint and comms
capability
W
LPAX05/MPAXP
[pg. 682 ]
1.5" LED Display
AC or DC Powered
Accepts various PAX
input modules
Optional plug-in
output modules
W
EPAX05/MPAXP
[pg. 694 ]
4" LED Display
AC Powered
Accepts various PAX
input modules
Optional plug-in
output modules
PROCESS
LPAX05/MPAXT
[pg. 682 ]
1.5" LED Display
AC or DC Powered
Accepts various PAX
input modules
Optional plug-in
output modules
W
EPAX05/MPAXT
[pg. 694 ]
4" LED Display
AC Powered
Accepts various PAX
input modules
Optional plug-in
output modules
TEMPERATURE
LPAX05/MPAXS
[pg. 682 ]
1.5" LED Display
AC or DC Powered
Accepts various PAX
input modules
Optional plug-in
output modules
W
EPAX05/MPAXS
[pg. 694 ]
4" LED Display
AC Powered
Accepts various PAX
input modules
Optional plug-in
output modules
STRAIN GAGE
LD2SS
[pg. 674 ]
2.25" LED Display
AC or DC Powered
NEMA 4X Case
Setpoint and comms
capability
W
LD4SS
[pg. 674 ]
4" LED Display
AC or DC Powered
NEMA 4X Case
Setpoint and comms
capability
SERIAL SLAVE
* See website for product information.

14 www.redlion.net
This page intentionally left blank.

1-717-767-6511
OPERATOR
INTERFACE
15
The Trusted Source for
Innovative Control
Solutions

16 www.redlion.net
This page intentionally left blank.

171-717-767-6511
G3
OPERATOR
INTERFACE
TERMINALS
3.2-INCH 128X64 PIXEL BACKLIGHT LCD, ABLE TO SUPPORT
TEXT AND GRAPHICS
CONFIGURED USING CRIMSON®SOFTWARE
UP TO 5 RS-232/422/485 COMMUNICATIONS PORTS
(3 ON BOARD, 2 ON OPTIONAL COMMUNICATIONS CARD)
ETHERNET PORT TO NETWORK UNITS
WEB-SERVE DATA & VISUALIZATION
PROTOCOL CONVERSION
EMAIL, SMS ALARMS/EVENTS
USB PORT TO DOWNLOAD THE UNIT’S CONFIGURATION FROM
A PC OR FOR DATA TRANSFERS TO A PC
COMPACTFLASH®SOCKET TO INCREASE MEMORY CAPACITY
OUTDOOR UNIT WITH UV RATED OVERLAY AVAILABLE
FOR USE IN HAZARDOUS LOCATIONS:
Class I, Division 2, Groups A, B, C, and D
Class II, Division 2, Groups F and G
Class III, Division 2
63YN
LABORATORY EQUIPMENT
GENERAL DESCRIPTION
The G303 Operator Interface Terminal combines unique capabilities
normally expected from high-end units with a very affordable price. It is built
around a high performance core with integrated functionality. This core allows
the G303 to perform many of the normal features of the Paradigm range of
Operator Interfaces while improving and adding new features.
The G303 is able to communicate with many different types of hardware using
high-speed RS-232/422/485 communications ports and Ethernet 10 Base T/100
Base-TX communications. In addition, the G303 features USB for fast downloads
of configuration files and access to trending and data logging. A CompactFlash
socket is provided so that Flash cards can be used to collect your trending and data
logging information as well as to store larger configuration files.
In addition to accessing and controlling of external resources, the G303
allows a user to easily view and enter information. The unit uses a Liquid
Crystal Display (LCD) module, which is easily readable in both indoor and
outdoor applications. Users can enter data through the front panel 32-button
keypad that has user identifiable keys.
SPECIFICATIONS
1. POWER REQUIREMENTS:
+24 VDC ±20% @ 9.5 W maximum.
2. BATTERY: Lithium coin cell. Typical lifetime of 10 years.
3. DISPLAY: 3.2" 128 x 64 pixel FSTN LCD with yellow LED backlight for
text and graphics applications.
4. 32-KEY KEYPAD: 8 user legendable keys, 5 navigational keys, 10+2
numeric keys, 4 dedicated keys, and 3 soft keys for on-screen menus.
5. MEMORY:
On Board User Memory: Non-volatile Flash memory.
Memory Card: CompactFlash Type II slot for Type I and Type II
CompactFlash cards.
6. COMMUNICATIONS:
USB Port: USB 1.1. Type B connection.
Serial Ports: Three ports total. Two RS-232 and one RS-485/422. Each port
is individually software programmable up to 115,200 baud.
DH485 TXEN: Transmit enable; open collector, VOH = 15 VDC, VOL = 0.5
V @ 25 mA max.
Ethernet Port: 10 BASE-T / 100 BASE-TX
7. ENVIRONMENTAL CONDITIONS:
Operating Temperature Range: 0 to 50°C
Storage Temperature Range: -30 to 70°C
Operating and Storage Humidity: 80% maximum relative humidity (non-
condensing) from 0 to 50°C.
Vibration according to IEC 68-2-6: Operational 5 to 8 Hz, 0.8" (p-p), 8 to
500 Hz, in X, Y, Z direction, duration: 1 hour, 3 g.
Shock according to IEC 68-2-27: Operational 40 g, 9 msec in 3 directions.
Altitude: Up to 2000 meters.
8. CERTIFICATIONS AND COMPLIANCES:
CE, UL Listed for use in Hazardous Locations, Class I, Division 2, Groups A,
B, C, and D; Class II, Division 2, Groups F and G; Class III, Division 2.
See data sheet on web site for detailed information.
9. RATINGS: NEMA 4X/IP66
10. WEIGHT: 1.96 lbs (0.89 Kg)
DIMENSIONS IN INCHES (MM)
MODEL G303 - 3” DISPLAY

18 www.redlion.net
MODEL NO. DESCRIPTION PART NUMBER
G303
G303S000
G303M000
Operator Interface for indoor applications only,
textured finish with embossed keys
Operator Interface for indoor or outdoor
applications, glossy finish with UV rated overlay
(keys are not embossed)
ORDERING INFORMATION
G303 PORT PIN OUTS
ACCESSORIES
OPTIONAL COMMUNICATION CARD
Red Lion offers optional communication cards for
fieldbus communications. These communication cards
will allow your G303 to communicate with many of
the popular fieldbus protocols.
Red Lion is also offering a communications card for
additional RS-232 and RS-422/485 communications.
See the G3 Accessories section on page 37 for
information about these cards.
CABLES AND DRIVERS
Red Lion has a wide range of cables
and drivers for use with many different
communication types. A list of these
drivers and cables along with pin outs
is available from Red Lion’s website.
New cables and drivers are added on a
regular basis. If making your own
cable, refer to the “G303 Port Pin
Outs” for wiring information.

191-717-767-6511
5.7-INCH FSTN MONOCHROME QVGA 320X240 PIXEL LCD WITH
WHITE LED BACKLIGHT
CONFIGURED USING CRIMSON®SOFTWARE
UP TO 5 RS-232/422/485 COMMUNICATIONS PORTS
(3 ON BOARD, 2 ON OPTIONAL COMMUNICATIONS CARD)
ETHERNET PORT TO NETWORK UNITS
WEB-SERVE DATA & VISUALIZATION
PROTOCOL CONVERSION
EMAIL, SMS ALARMS/EVENTS
USB PORT TO DOWNLOAD THE UNIT’S CONFIGURATION FROM
A PC OR FOR DATA TRANSFERS TO A PC
COMPACTFLASH®SOCKET TO INCREASE MEMORY CAPACITY
OUTDOOR UNIT WITH UV RATED OVERLAY AVAILABLE
5 BUTTON KEYPAD FOR ON-SCREEN MENUS
RESISTIVE ANALOG TOUCHSCREEN
GENERAL DESCRIPTION
The G306M Operator Interface Terminal combines unique capabilities
normally expected from high-end units with a very affordable price. It is built
around a high performance core with integrated functionality.
The G306 is able to communicate with many different types of hardware using
high-speed RS-232/422/485 communications ports and Ethernet 10 Base T/100
Base-TX communications. In addition, the G306 features USB for fast downloads
of configuration files and access to trending and data logging. A CompactFlash
socket is provided so that Flash cards can be used to collect your trending and data
logging information as well as to store larger configuration files.
In addition to accessing and controlling of external resources, the G306
allows a user to easily view and enter information. The unit uses a Liquid
Crystal Display (LCD) module, which is easily readable in both indoor and
outdoor applications. Users can enter data through the touchscreen and/or front
panel 5-button keypad.
SPECIFICATIONS
1. POWER REQUIREMENTS:
+24 VDC ±20% @ 14 W maximum.
2. BATTERY: Lithium coin cell. Typical lifetime of 10 years.
3. LCD DISPLAY: 5.7" 320 x 240 pixel FSTN LCD.
4. 5-KEY KEYPAD: for on-screen menus.
5. MEMORY:
On Board User Memory: Non-volatile Flash memory.
Memory Card: CompactFlash Type II slot for Type I and Type II
CompactFlash cards.
6. COMMUNICATIONS:
USB Port: USB 1.1. Type B connection.
Serial Ports: Three ports total. Two RS-232 and one RS-485/422. Each port
is individually software programmable up to 115,200 baud.
DH485 TXEN: Transmit enable; open collector, VOH = 15 VDC, VOL = 0.5
V @ 25 mA max.
Ethernet Port: 10 BASE-T / 100 BASE-TX
7. ENVIRONMENTAL CONDITIONS:
Operating Temperature Range: 0 to 50°C
Storage Temperature Range: -20 to 70°C
Operating and Storage Humidity: 80% maximum relative humidity (non-
condensing) from 0 to 50°C.
Altitude: Up to 2000 meters.
8. CERTIFICATIONS AND COMPLIANCES:
CE
See data sheet on web site for detailed information.
9. RATINGS: NEMA 4X/IP66
10. WEIGHT: 3.0 lbs (1.36 Kg)
DIMENSIONS IN INCHES (MM)
MODEL G306M/S
-
5.7”
DISPLAY

20 www.redlion.net
ORDERING INFORMATION
G306M/S PORT PIN OUTS
ACCESSORIES
OPTIONAL COMMUNICATION CARD
Red Lion offers optional communication cards for
fieldbus communications. These communication cards
will allow your G306M/S to communicate with many
of the popular fieldbus protocols.
Red Lion is also offering a communications card for
additional RS-232 and RS-422/485 communications.
See the G3 Accessories section on page 37 for
information about these cards.
CABLES AND DRIVERS
Red Lion has a wide range of cables
and drivers for use with many different
communication types. A list of these
drivers and cables along with pin outs
is available from Red Lion’s website.
New cables and drivers are added on a
regular basis. If making your own
cable, refer to the “G306M/S Port Pin
Outs” for wiring information.
MODEL NO. DESCRIPTION PART NUMBER
G306MS00
G306M000
G306M
Operator Interface for indoor applications, textured
finish with embossed keys
Operator Interface for indoor or outdoor
applications, glossy finish with UV rated overlay
(keys are not embossed)

211-717-767-6511
5.7-INCH TFT ACTIVE MATRIX 256 COLOR QVGA 320X240 PIXEL
LCD
CONFIGURED USING CRIMSON®SOFTWARE
UP TO 5 RS-232/422/485 COMMUNICATIONS PORTS
(3 ON BOARD, 2 ON OPTIONAL COMMUNICATIONS CARD)
ETHERNET PORT TO NETWORK UNITS
WEB-SERVE DATA & VISUALIZATION
PROTOCOL CONVERSION
EMAIL, SMS ALARMS/EVENTS
USB PORT TO DOWNLOAD THE UNIT’S CONFIGURATION FROM
A PC OR FOR DATA TRANSFERS TO A PC
COMPACTFLASH®SOCKET TO INCREASE MEMORY CAPACITY
5 BUTTON KEYPAD FOR ON-SCREEN MENUS
RESISTIVE ANALOG TOUCHSCREEN
FOR USE IN HAZARDOUS LOCATIONS:
Class I, Division 2, Groups A, B, C, and D
Class II, Division 2, Groups F and G
Class III, Division 2
63YN
LABORATORY EQUIPMENT
GENERAL DESCRIPTION
The G306A Operator Interface Terminal combines unique capabilities
normally expected from high-end units with a very affordable price. It is built
around a high performance core with integrated functionality. This core allows
the G306A to perform many of the normal features of the Paradigm range of
Operator Interfaces while improving and adding new features.
The G306A is able to communicate with many different types of hardware
using high-speed RS-232/422/485 communications ports and Ethernet 10 Base
T/100 Base-TX communications. In addition, the G306A features USB for fast
downloads of configuration files and access to trending and data logging. A
CompactFlash socket is provided so that Flash cards can be used to collect your
trending and data logging information as well as to store larger configuration
files.
In addition to accessing and controlling of external resources, the G306A
allows a user to easily view and enter information. Users can enter data through
the touchscreen and/or front panel 5-button keypad.
SPECIFICATIONS
1. POWER REQUIREMENTS:
+24 VDC ±20% @ 14 W maximum.
2. BATTERY: Lithium coin cell. Typical lifetime of 10 years.
3. LCD DISPLAY: 5.7" 320 x 240 pixel TFT LCD.
4. 5-KEY KEYPAD: for on-screen menus.
5. MEMORY:
On Board User Memory: Non-volatile Flash memory.
Memory Card: CompactFlash Type II slot for Type I and Type II
CompactFlash cards.
6. COMMUNICATIONS:
USB Port: USB 1.1. Type B connection.
Serial Ports: Three ports total. Two RS-232 and one RS-485/422. Each port
is individually software programmable up to 115,200 baud.
DH485 TXEN: Transmit enable; open collector, VOH = 15 VDC, VOL = 0.5
V @ 25 mA max.
Ethernet Port: 10 BASE-T / 100 BASE-TX
7. ENVIRONMENTAL CONDITIONS:
Operating Temperature Range: 0 to 50°C
Storage Temperature Range: -20 to 70°C
Operating and Storage Humidity: 80% maximum relative humidity (non-
condensing) from 0 to 50°C.
Vibration according to IEC 68-2-6: Operational 5 to 8 Hz, 0.8" (p-p), 8 to
500 Hz, in X, Y, Z direction, duration: 1 hour, 3 g.
Shock according to IEC 68-2-27: Operational 40 g, 9 msec in 3 directions.
Altitude: Up to 2000 meters.
8. CERTIFICATIONS AND COMPLIANCES:
CE, UL Listed for use in hazardous locations, Class I, Division 2, Groups A,
B, C, and D; Class II, Division 2, Groups F and G; Class III, Division 2.
See data sheet on web site for detailed information.
9. RATINGS: NEMA 4X/IP66
10. WEIGHT: 3.0 lbs (1.36 Kg)
DIMENSIONS IN INCHES (MM)
MODEL G306A
-
5.7”
DISPLAY

22 www.redlion.net
ORDERING INFORMATION
G306A PORT PIN OUTS
ACCESSORIES
OPTIONAL COMMUNICATION CARD
Red Lion offers optional communication cards for
fieldbus communications. These communication cards
will allow your G306A to communicate with many of
the popular fieldbus protocols.
Red Lion is also offering a communications card for
additional RS-232 and RS-422/485 communications.
See the G3 Accessories section on page 37 for
information about these cards.
CABLES AND DRIVERS
Red Lion has a wide range of cables
and drivers for use with many different
communication types. A list of these
drivers and cables along with pin outs
is available from Red Lion’s website.
New cables and drivers are added on a
regular basis. If making your own
cable, refer to the “G306A Port Pin
Outs” for wiring information.
G306A G306A000
Operator Interface for indoor applications, textured
finish with embossed keys
PART NUMBERDESCRIPTIONMODEL NO.

231-717-767-6511
7.7-INCH DSTN PASSIVE MATRIX 256 COLOR VGA 640X480 PIXEL
LCD MODULE
CONFIGURED USING CRIMSON®SOFTWARE
UP TO 5 RS-232/422/485 COMMUNICATIONS PORTS
(3 ON BOARD, 2 ON OPTIONAL COMMUNICATIONS CARD)
ETHERNET PORT TO NETWORK UNITS
WEB-SERVE DATA & VISUALIZATION
PROTOCOL CONVERSION
EMAIL, SMS ALARMS/EVENTS
USB PORT TO DOWNLOAD THE UNIT’S CONFIGURATION FROM
A PC OR FOR DATA TRANSFERS TO A PC
COMPACTFLASH®SOCKET TO INCREASE MEMORY CAPACITY
7 BUTTON KEYPAD FOR ON-SCREEN MENUS
RESISTIVE ANALOG TOUCHSCREEN
FOR USE IN HAZARDOUS LOCATIONS:
Class I, Division 2, Groups A, B, C, and D
Class II, Division 2, Groups F and G
Class III, Division 2
63YN
LABORATORY EQUIPMENT
GENERAL DESCRIPTION
The G308 Operator Interface Terminal combines unique capabilities
normally expected from high-end units with a very affordable price. It is built
around a high performance core with integrated functionality. This core allows
the G308 to perform many of the normal features of the Paradigm range of
Operator Interfaces while improving and adding new features.
The G308 is able to communicate with many different types of hardware using
high-speed RS-232/422/485 communications ports and Ethernet 10 Base T/100
Base-TX communications. In addition, the G308 features USB for fast downloads
of configuration files and access to trending and data logging. A CompactFlash
socket is provided so that Flash cards can be used to collect your trending and data
logging information as well as to store larger configuration files.
In addition to accessing and controlling of external resources, the G308
allows a user to easily view and enter information. Users can enter data through
the touchscreen or front panel 7-button keypad.
SPECIFICATIONS
1. POWER REQUIREMENTS:
+24 VDC ±20% @ 24 W maximum.
2. BATTERY: Lithium coin cell. Typical lifetime of 10 years.
3. DISPLAY: 7.7" 640 x 480 pixel DSTN passive matrix.
4. 7-KEY KEYPAD: for on-screen menus.
5. MEMORY:
On Board User Memory: Non-volatile Flash memory.
Memory Card: CompactFlash Type II slot for Type I and Type II
CompactFlash cards.
6. COMMUNICATIONS:
USB Port: USB 1.1. Type B connection.
Serial Ports: Three ports total. Two RS-232 and one RS-485/422. Each port
is individually software programmable up to 115,200 baud.
DH485 TXEN: Transmit enable; open collector, VOH = 15 VDC, VOL = 0.5
V @ 25 mA max.
Ethernet Port: 10 BASE-T / 100 BASE-TX
7. ENVIRONMENTAL CONDITIONS:
Operating Temperature Range: 0 to 50°C
Storage Temperature Range: -20 to 60°C
Operating and Storage Humidity: 80% maximum relative humidity (non-
condensing) from 0 to 50°C.
Vibration according to IEC 68-2-6: Operational 5 to 500 Hz, in X, Y, Z
direction for 1.5 hours, 5 g’s..
Shock according to IEC 68-2-27: Operational 40 g, 9 msec in 3 directions.
Altitude: Up to 2000 meters.
8. CERTIFICATIONS AND COMPLIANCES:
CE, UL Listed for use in hazardous locations, Class I, Division 2, Groups A,
B, C, and D; Class II, Division 2, Groups F and G; Class III, Division 2.
See data sheet on web site for detailed information.
9. RATINGS: NEMA 4X/IP66
10. WEIGHT: 3.84 lbs (1.74 Kg)
DIMENSIONS IN INCHES (MM)
MODEL G308
-
7.7”
DISPLAY

24 www.redlion.net
ORDERING INFORMATION
G308 PORT PIN OUTS
ACCESSORIES
OPTIONAL COMMUNICATION CARD
Red Lion offers optional communication cards for
fieldbus communications. These communication cards
will allow your G308 to communicate with many of the
popular fieldbus protocols.
Red Lion is also offering a communications card for
additional RS-232 and RS-422/485 communications.
See the G3 Accessories section on page 37 for
information about these cards.
CABLES AND DRIVERS
Red Lion has a wide range of cables
and drivers for use with many different
communication types. A list of these
drivers and cables along with pin outs
is available from Red Lion’s website.
New cables and drivers are added on a
regular basis. If making your own
cable, refer to the “G308 Port Pin
Outs” for wiring information.
G308 G308C000
Operator Interface for indoor applications, textured
finish with embossed keys
PART NUMBERDESCRIPTIONMODEL NO.

251-717-767-6511
8.4-INCH TFT ACTIVE MATRIX DISPLAY, 256 COLOR VGA 640X480
PIXELS
CONFIGURED USING CRIMSON®SOFTWARE
UP TO 5 RS-232/422/485 COMMUNICATIONS PORTS
(3 ON BOARD, 2 ON OPTIONAL COMMUNICATIONS CARD)
ETHERNET PORT TO NETWORK UNITS
WEB-SERVE DATA & VISUALIZATION
PROTOCOL CONVERSION
EMAIL, SMS ALARMS/EVENTS
USB PORT TO DOWNLOAD THE UNIT’S CONFIGURATION FROM
A PC OR FOR DATA TRANSFERS TO A PC
COMPACTFLASH®SOCKET TO INCREASE MEMORY CAPACITY
7 BUTTON KEYPAD FOR ON-SCREEN MENUS
RESISTIVE ANALOG TOUCHSCREEN
FOR USE IN HAZARDOUS LOCATIONS:
Class I, Division 2, Groups A, B, C, and D
Class II, Division 2, Groups F and G
Class III, Division 2
63YN
LABORATORY EQUIPMENT
GENERAL DESCRIPTION
The G308 Operator Interface Terminal combines unique capabilities
normally expected from high-end units with a very affordable price. It is built
around a high performance core with integrated functionality. This core allows
the G308 to perform many of the normal features of the Paradigm range of
Operator Interfaces while improving and adding new features.
The G308 is able to communicate with many different types of hardware using
high-speed RS-232/422/485 communications ports and Ethernet 10 Base T/100
Base-TX communications. In addition, the G308 features USB for fast downloads
of configuration files and access to trending and data logging. A CompactFlash
socket is provided so that Flash cards can be used to collect your trending and data
logging information as well as to store larger configuration files.
In addition to accessing and controlling of external resources, the G308
allows a user to easily view and enter information. Users can enter data through
the touchscreen or front panel 7-button keypad.
SPECIFICATIONS
1. POWER REQUIREMENTS:
+24 VDC ±20% @ 24 W maximum.
2. BATTERY: Lithium coin cell. Typical lifetime of 10 years.
3. DISPLAY: 8.4" 640 x 480 pixel TFT active matrix.
4. 7-KEY KEYPAD: for on-screen menus.
5. MEMORY:
On Board User Memory: Non-volatile Flash memory.
Memory Card: CompactFlash Type II slot for Type I and Type II
CompactFlash cards.
6. COMMUNICATIONS:
USB Port: USB 1.1. Type B connection.
Serial Ports: Three ports total. Two RS-232 and one RS-485/422. Each port
is individually software programmable up to 115,200 baud.
DH485 TXEN: Transmit enable; open collector, VOH = 15 VDC, VOL = 0.5
V @ 25 mA max.
Ethernet Port: 10 BASE-T / 100 BASE-TX
7. ENVIRONMENTAL CONDITIONS:
Operating Temperature Range: 0 to 50°C
Storage Temperature Range: -20 to 60°C
Operating and Storage Humidity: 80% maximum relative humidity (non-
condensing) from 0 to 50°C.
Vibration according to IEC 68-2-6: Operational 10 to 55 Hz, in X, Y, Z
direction for 1.5 hours, 1 g.
Shock according to IEC 68-2-27: Operational 30 g’s, 9 msec in 3
directions.
Altitude: Up to 2000 meters.
8. CERTIFICATIONS AND COMPLIANCES:
CE, UL Listed for use in hazardous locations, Class I, Division 2, Groups A,
B, C, and D; Class II, Division 2, Groups F and G; Class III, Division 2.
See data sheet on web site for detailed information.
9. RATINGS: NEMA 4X/IP66
10. WEIGHT: 4.20 lbs (1.91 Kg)
MODEL G308A
-
8.4”
DISPLAY
DIMENSIONS IN INCHES (MM)

26 www.redlion.net
ORDERING INFORMATION
G308A PORT PIN OUTS
ACCESSORIES
OPTIONAL COMMUNICATION CARD
Red Lion offers optional communication cards for
fieldbus communications. These communication cards
will allow your G308A to communicate with many of
the popular fieldbus protocols.
Red Lion is also offering a communications card for
additional RS-232 and RS-422/485 communications.
See the G3 Accessories section on page 37 for
information about these cards.
CABLES AND DRIVERS
Red Lion has a wide range of cables
and drivers for use with many different
communication types. A list of these
drivers and cables along with pin outs
is available from Red Lion’s website.
New cables and drivers are added on a
regular basis. If making your own
cable, refer to the “G308A Port Pin
Outs” for wiring information.
G308A G308A000
Operator Interface with TFT display for indoor
applications, textured finish with embossed keys
PART NUMBERDESCRIPTIONMODEL NO.

271-717-767-6511
FOR USE IN HAZARDOUS LOCATIONS:
Class I, Division 2, Groups A, B, C, and D
Class II, Division 2, Groups F and G
Class III, Division 2
63YN
LABORATORY EQUIPMENT
GENERAL DESCRIPTION
SPECIFICATIONS
MODEL G310C/S
-
10.4” DISPLAY
DIMENSIONS IN INCHES (MM)
1. POWER REQUIREMENTS:
G310C: +24 VDC ±20% @ 33 W maximum.
G310S: +24 VDC ±20% @ 25 W maximum.
2. BATTERY: Lithium coin cell. Typical lifetime of 10 years.
3. DISPLAY: 10.4" 640 x 480 pixel TFT active matrix.
4. 8-KEY KEYPAD: for on-screen menus.
5. MEMORY:
On Board User Memory: Non-volatile Flash memory.
Memory Card: CompactFlash Type II slot for Type I and Type II
CompactFlash cards.
6. COMMUNICATIONS:
USB Port: USB 1.1. Type B connection.
Serial Ports: Three ports total. Two RS-232 and one RS-485/422. Each port
is individually software programmable up to 115,200 baud.
DH485 TXEN: Transmit enable; open collector, VOH = 15 VDC, VOL = 0.5
V @ 25 mA max.
Ethernet Port: 10 BASE-T / 100 BASE-TX
7. ENVIRONMENTAL CONDITIONS:
Operating Temperature Range: 0 to 50°C
Storage Temperature Range: -20 to 70°C
Operating and Storage Humidity: 80% maximum relative humidity (non-
condensing) from 0 to 50°C.
Vibration according to IEC 68-2-6: Operational 10 to 55 Hz, in X, Y, Z
direction for 1.5 hours, 1 g.
Shock according to IEC 68-2-27: Operational 30 g, 9 msec in 3 directions.
Altitude: Up to 2000 meters.
8. CERTIFICATIONS AND COMPLIANCES:
CE, UL Listed for use in hazardous locations, Class I, Division 2, Groups A,
B, C, and D; Class II, Division 2, Groups F and G; Class III, Division 2.
See data sheet on web site for detailed information.
9. RATINGS: NEMA 4X/IP66
10. WEIGHT: 5.53 lbs (2.51 Kg)
The G310 Operator Interface Terminal combines unique capabilities
normally expected from high-end units with a very affordable price. It is built
around a high performance core with integrated functionality. This core allows
the G310 to perform many of the normal features of the Paradigm range of
Operator Interfaces while improving and adding new features.
The G310 is able to communicate with many different types of hardware using
high-speed RS-232/422/485 communications ports and Ethernet 10 Base T/100
Base-TX communications. In addition, the G310 features USB for fast downloads
of configuration files and access to trending and data logging. A CompactFlash
socket is provided so that Flash cards can be used to collect your trending and data
logging information as well as to store larger configuration files.
In addition to accessing and controlling of external resources, the G310
allows a user to easily view and enter information. An outdoor version is
available for direct sunlight applications. Users can enter data through the
touchscreen or front panel 8-button keypad.
10.4-INCH TFT ACTIVE MATRIX DISPLAY, 256 COLOR VGA
640X480 PIXELS
CONFIGURED USING CRIMSON®SOFTWARE
UP TO 5 RS-232/422/485 COMMUNICATIONS PORTS
(3 ON BOARD, 2 ON OPTIONAL COMMUNICATIONS CARD)
ETHERNET PORT TO NETWORK UNITS
WEB-SERVE DATA & VISUALIZATION
PROTOCOL CONVERSION
EMAIL, SMS ALARMS/EVENTS
USB PORT TO DOWNLOAD THE UNIT’S CONFIGURATION FROM
A PC OR FOR DATA TRANSFERS TO A PC
COMPACTFLASH®SOCKET TO INCREASE MEMORY CAPACITY
OUTDOOR UNIT WITH UV RATED OVERLAY AVAILABLE
8 BUTTON KEYPAD FOR ON-SCREEN MENUS
RESISTIVE ANALOG TOUCHSCREEN

28 www.redlion.net
ORDERING INFORMATION
G310C/S PORT PIN OUTS
ACCESSORIES
OPTIONAL COMMUNICATION CARD
Red Lion offers optional communication cards for
fieldbus communications. These communication cards
will allow your G310 to communicate with many of
the popular fieldbus protocols.
Red Lion is also offering a communications card for
additional RS-232 and RS-422/485 communications.
See the G3 Accessories section on page 37 for
information about these cards.
CABLES AND DRIVERS
Red Lion has a wide range of cables
and drivers for use with many different
communication types. A list of these
drivers and cables along with pin outs
is available from Red Lion’s website.
New cables and drivers are added on a
regular basis. If making your own
cable, refer to the “G310C/S Port Pin
Outs” for wiring information.
G310S
G310C
G310S000
G310C000
Operator Interface for indoor applications, textured
finish with embossed keys
PART NUMBERDESCRIPTIONMODEL NO.
Operator Interface for indoor or outdoor
applications, glossy finish with UV rated overlay
(keys are not embossed)

291-717-767-6511
GENERAL DESCRIPTION
SPECIFICATIONS
MODEL G315
-
15”
DISPLAY
DIMENSIONS IN INCHES (MM)
1. POWER REQUIREMENTS:
+24 VDC ±20% @ 67 W maximum.
2. BATTERY: Lithium coin cell. Typical lifetime of 10 years.
3. DISPLAY: 15" 1024 x 768 pixel TFT active matrix.
4. 10-KEY KEYPAD: for on-screen menus.
5. MEMORY:
On Board User Memory: Non-volatile Flash memory.
Memory Card: CompactFlash Type II slot for Type I and Type II
CompactFlash cards.
6. COMMUNICATIONS:
USB Port: USB 1.1. Type B connection.
Serial Ports: Four ports total. Two RS-232 and two RS-485/422. Each port
is individually software programmable up to 115,200 baud.
DH485 TXEN: Transmit enable; open collector, VOH = 15 VDC, VOL = 0.5
V @ 25 mA max.
Ethernet Port: 10 BASE-T / 100 BASE-TX
7. ENVIRONMENTAL CONDITIONS:
Operating Temperature Range: 0 to 50°C
Storage Temperature Range: -20 to 70°C
Operating and Storage Humidity: 80% maximum relative humidity (non-
condensing) from 0 to 50°C.
Altitude: Up to 2000 meters.
8. CERTIFICATIONS AND COMPLIANCES:
CE
See data sheet on web site for detailed information.
9. RATINGS: NEMA 4X/IP66
10. WEIGHT: 11.41 lbs (5.17 Kg)
The G315C Operator Interface combines powerful features normally found
only in PC-based HMIs, with the reliability of a dedicated operating system. It
is built around a high performance core with integrated features, allowing it to
provide SCADA-like functionality at a fraction of the cost.
The G315C is able to act as a multiple protocol converter using four high-
speed RS-232/422/485 communications ports and an Ethernet 10/100 Base-TX
port. The Ethernet port supports up to four protocols simultaneously, allowing
dissimilar Ethernet based products to communicate with one another.
The G315C's USB port allows fast downloads of configuration files and
access to trending and data logging. A CompactFlash socket is provided so that
standard ComplactFlash cards can be used to collect your trending and data
logging information as well as to store configuration files. The built-in web
server allows processes to be controlled remotely.
The G315C's large, high-resolution display allows users to easily view and
enter information. Data can be manipulated through the touchscreen and/or the
10-button keypad.
15-INCH TFT ACTIVE MATRIX DISPLAY, 32K COLOR VGA
1024X768 PIXELS
CONFIGURED USING CRIMSON®SOFTWARE
UP TO 6 RS-232/422/485 COMMUNICATIONS PORTS
(4 ON BOARD, 2 ON OPTIONAL COMMUNICATIONS CARD)
ETHERNET PORT SUPPORTS MULITPLE PROTOCOLS
SIMULTANEOUSLY
PROTOCOL CONVERSION
EMAIL, SMS ALARMS/EVENTS
BUILT-IN WEB SERVER AND FTP SERVER/CLIENT
USB PORT TO DOWNLOAD THE UNIT’S CONFIGURATION FROM
A PC OR FOR DATA TRANSFERS TO A PC
COMPACTFLASH®SOCKET TO INCREASE MEMORY CAPACITY
10 BUTTON KEYPAD FOR ON-SCREEN MENUS
RESISTIVE ANALOG TOUCHSCREEN

30 www.redlion.net
ORDERING INFORMATION
G315C PORT PIN OUTS
ACCESSORIES
OPTIONAL COMMUNICATION CARD
Red Lion offers optional communication cards for
fieldbus communications. These communication cards
will allow your G315 to communicate with many of
the popular fieldbus protocols.
Red Lion is also offering a communications card for
additional RS-232 and RS-422/485 communications.
See the G3 Accessories section on page 37 for
information about these cards.
CABLES AND DRIVERS
Red Lion has a wide range of cables
and drivers for use with many different
communication types. A list of these
drivers and cables along with pin outs
is available from Red Lion’s website.
New cables and drivers are added on a
regular basis. If making your own
cable, refer to the “G315C Port Pin
Outs” for wiring information.
G315C G315C000
Operator Interface for indoor applications, textured
finish with embossed keys
PART NUMBERDESCRIPTIONMODEL NO.

311-717-767-6511
GENERAL DESCRIPTION
SPECIFICATIONS
MODEL G304K
-
4.3”
DISPLAY
1. POWER REQUIREMENTS:
Supply Voltage: 12-28 VDC, Class 2
Maximum Power: 3.6 W; Start up current may be as high as 700 mA
Fused: Fast-blow 800mA, 5x20mm
2. DISPLAY: 4.3" 480 x 272 pixel TFT active matrix.
3. MEMORY: 2MB of non-volatile flash memory.
4. COMMUNICATIONS:
Serial Ports: Two Serial Ports total. One RS-232 port, one RS-232/422/485
Each port is individually software programmable up to 115,200 baud.
5. ENVIRONMENTAL CONDITIONS:
Operating Temperature Range: 0 to 45°C
Operating and Storage Humidity: 10-90% relative humidity (non-
condensing) from 0 to 45°C.
Vibration: Operational 10 to 25 Hz in X, Y, Z direction for 30 minutes, 2 g’s.
6. CERTIFICATIONS AND COMPLIANCES:
CE, UL Listed
See data sheet on web site for detailed information.
7. RATINGS: NEMA 4/IP65
8. WEIGHT: 9.4 oz (270 g)
The 4.3-inch G3 Kadet was designed for applications in which available
mounting space is at a premium. Though diminutive in size, the Kadet boasts a
bright TFT display with full 256-color support. With a resolution of 480 x 272,
the Kadet’s 4.3-inch display has a higher resolution and better image clarity
than most 6-inch HMIs.
The G3 Kadet offers two high-speed serial ports in the form of one RS-232
and one RS-232/422/485 ports. This allows the Kadet to simultaneously
communicate with devices from different manufacturers, as well as to perform
protocol conversion.
The G3 Kadet range of HMIs is programmed with Red Lion’s free Crimson
2.0 software. Crimson 2.0 offers easy to use drag and drop communications
configuration, while the embedded image library allows the programmer to
create intuitive screens and prompts for the operator.
BRIGHT 4.3-INCH TFT ACTIVE MATRIX 256 COLOR 480 x 272
PIXEL DISPLAY
CONFIGURED USING CRIMSON®SOFTWARE
TWO SERIAL COMMUNICATIONS PORTS
(1 RS-232 AND 1 RS-232/422/485)
RESISTIVE ANALOG TOUCHSCREEN
PROTOCOL CONVERSION
C
C
US LISTED
US LISTED
UL
R
IND. CONT. EQ.
22SV
DIMENSIONS IN INCHES (MM)
G3 KADET O/I TERMINALS

32 www.redlion.net
DEVICE COMMUNICATIONS
Several adapters are available which allow direct connection via Red Lion
communications cables. For a list of adapters and cables, please visit
http://www.redlion.net/support/downloads.html.
G3 Comms Cable
PT# CBLxxxxx
Kadet Adapter
PT# CBLADKxx
ORDERING INFORMATION
ACCESSORIES
CABLES AND DRIVERS
Red Lion has a wide range of cables
and drivers for use with many different
communication types. A list of these
drivers and cables along with pin outs is
available from Red Lion’s website.
New cables and drivers are added on a
regular basis. If making your own cable,
refer to the “Device Communications”
for wiring information.
G304K G304K0004.3" TFT Operator Interface
PART NUMBERDESCRIPTIONMODEL NO.

331-717-767-6511
GENERAL DESCRIPTION
SPECIFICATIONS
MODEL G306K
-
5.6” DISPLAY
1. POWER REQUIREMENTS:
Supply Voltage: 12 - 24 VDC, Class 2
Maximum Power: 200 mA @ 24 VDC
Fuse: Fast-blow 800mA, 5x20mm
2. BATTERY: Lithium coin cell. Typical lifetime of 10 years.
3. DISPLAY: 5.6" 320 x 234 pixel TFT active matrix.
4. MEMORY:
On Board User Memory: Non-volatile Flash memory.
Memory Card: CompactFlash Type II slot for Type I and Type II
CompactFlash cards.
5. COMMUNICATIONS:
Serial Ports: Three Serial Ports total. One RS-232 port, two RS-232/422/485
Each port is individually software programmable up to 115,200 baud.
Ethernet Port: 10 Mbps
6. ENVIRONMENTAL CONDITIONS:
Operating Temperature Range: 0 to 45°C
Operating and Storage Humidity: 10-90% relative humidity (non-
condensing) from 0 to 45°C.
Vibration: Operational 10 to 25 Hz in X, Y, Z direction for 30 minutes, 2 g’s.
7. CERTIFICATIONS AND COMPLIANCES:
CE, UL Listed
See data sheet on web site for detailed information.
8. RATINGS: NEMA 4/IP65
9. WEIGHT: 30 oz (850 g)
The G306K is the perfect solution for applications that require the operator
to monitor and control more than just a single device. With three serial ports and
an Ethernet port, the 5.6" Kadet can connect to multiple serial and Ethernet
devices simultaneously, including PLCs, motor drives, bar code scanners, etc.
The G306K performs the functions of a multiple protocol converter, using
three high-speed RS-232/422/485 communications ports and a 10 Base-T
Ethernet port. The Ethernet port supports up to four protocols simultaneously,
allowing dissimilar Ethernet based products to communicate with one another.
The CompactFlash slot can be used to load the unit's configuration file,
allowing configuration changes to be made and saved to the card for later
transfer.
The G3 Kadet range of HMIs is programmed with Red Lion's free Crimson
2.0 software. Crimson 2.0 offers easy to use drag and drop communications
configuration, while the embedded image library allows the programmer to
create intuitive screens and prompts for the operator.
5.6-INCH TFT ACTIVE MATRIX 256 COLOR QVGA 320 X 234 PIXEL
DISPLAY
CONFIGURED USING CRIMSON®SOFTWARE
THREE SERIAL COMMUNICATIONS PORTS
(1 RS-232 AND 2 RS-232/422/485 PORTS)
ETHERNET PORT SUPPORTS MULITPLE PROTOCOLS
SIMULTANEOUSLY
COMPACTFLASH®SOCKET FOR LOADING DATABASE IN FIELD
RESISTIVE ANALOG TOUCHSCREEN
PROTOCOL CONVERSION
C
C
US LISTED
US LISTED
UL
R
IND. CONT. EQ.
22SV
DIMENSIONS IN INCHES (MM)

34 www.redlion.net
DEVICE COMMUNICATIONS
Several adapters are available which allow direct connection via Red Lion
communications cables. For a list of adapters and cables, please visit
http://www.redlion.net/support/downloads.html.
G3 Comms Cable
PT# CBLxxxxx
Kadet Adapter
PT# CBLADKxx
ORDERING INFORMATION
ACCESSORIES
CABLES AND DRIVERS
Red Lion has a wide range of cables
and drivers for use with many different
communication types. A list of these
drivers and cables along with pin outs is
available from Red Lion’s website.
New cables and drivers are added on a
regular basis. If making your own cable,
refer to the “Device Communications”
for wiring information.
G306K G306K0005.6" TFT Operator Interface
PART NUMBERDESCRIPTIONMODEL NO.

351-717-767-6511
GENERAL DESCRIPTION
SPECIFICATIONS
MODEL G308K
-
8” DISPLAY
1. POWER REQUIREMENTS:
Supply Voltage: 24 VDC ±5%, Class 2
Maximum Power: 440 mA @ 24 VDC
Fuse: Fast-blow 800mA, 5x20mm
2. BATTERY: Lithium coin cell. Typical lifetime of 10 years.
3. DISPLAY: 8" 640 x 480 pixel TFT active matrix.
4. MEMORY:
On Board User Memory: Non-volatile Flash memory.
Memory Card: CompactFlash Type II slot for Type I and Type II
CompactFlash cards.
5. COMMUNICATIONS:
Serial Ports: Three Serial Ports total. One RS-232 port, two RS-232/422/485
Each port is individually software programmable up to 115,200 baud.
Ethernet Port: 10 Mbps
6. ENVIRONMENTAL CONDITIONS:
Operating Temperature Range: 0 to 45°C
Operating and Storage Humidity: 10-90% relative humidity (non-
condensing) from 0 to 45°C.
Vibration: Operational 10 to 25 Hz in X, Y, Z direction for 30 minutes, 2 g’s.
7. CERTIFICATIONS AND COMPLIANCES:
CE, UL Listed
See data sheet on web site for detailed information.
8. RATINGS: NEMA 4/IP65
9. WEIGHT: 42.4 oz (1.2 g)
The G308K is the perfect solution for applications that require the operator
to monitor and control more than just a single device. With three serial ports and
an Ethernet port, the 8" Kadet can connect to multiple serial and Ethernet
devices simultaneously, including PLCs, motor drives, bar code scanners, etc.
The G308K performs the functions of a multiple protocol converter, using
three high-speed RS-232/422/485 communications ports and a 10 Base-T
Ethernet port. The Ethernet port supports up to four protocols simultaneously,
allowing dissimilar Ethernet based products to communicate with one another.
The CompactFlash slot can be used to load the unit's configuration file,
allowing configuration changes to be made and saved to the card for later
transfer.
The G3 Kadet range of HMIs is programmed with Red Lion's free Crimson
2.0 software. Crimson 2.0 offers easy to use drag and drop communications
configuration, while the embedded image library allows the programmer to
create intuitive screens and prompts for the operator.
8-INCH TFT ACTIVE MATRIX 256 COLOR VGA 640 X 480 PIXEL
DISPLAY
CONFIGURED USING CRIMSON®SOFTWARE
THREE SERIAL COMMUNICATIONS PORTS
(1 RS-232 AND 2 RS-232/422/485 PORTS)
ETHERNET PORT SUPPORTS MULITPLE PROTOCOLS
SIMULTANEOUSLY
COMPACTFLASH®SOCKET FOR LOADING DATABASE IN FIELD
RESISTIVE ANALOG TOUCHSCREEN
PROTOCOL CONVERSION
C
C
US LISTED
US LISTED
UL
R
IND. CONT. EQ.
22SV
DIMENSIONS IN INCHES (MM)

36 www.redlion.net
DEVICE COMMUNICATIONS
Several adapters are available which allow direct connection via Red Lion
communications cables. For a list of adapters and cables, please visit
http://www.redlion.net/support/downloads.html.
G3 Comms Cable
PT# CBLxxxxx
Kadet Adapter
PT# CBLADKxx
ORDERING INFORMATION
ACCESSORIES
CABLES AND DRIVERS
Red Lion has a wide range of cables
and drivers for use with many different
communication types. A list of these
drivers and cables along with pin outs is
available from Red Lion’s website. New
cables and drivers are added on a
regular basis. If making your own cable,
refer to the “Device Communications”
for wiring information.
G308K G308K0008" TFT Operator Interface
PART NUMBERDESCRIPTIONMODEL NO.

371-717-767-6511
ORDERING INFORMATION
G3 ACCESSORIES
CONFIGURED USING CRIMSON®SOFTWARE
ISOLATED RS-232 AND RS-485
MULTIPLEXED PORTS CAPABLE OF
COMMUNICATING WITH RS-232, RS-422, RS-
485 AND DH485 DEVICES AT UP TO 115,200
BAUD
EASY INSTALLATION
GENERAL DESCRIPTION
The G3 proprietary expansion slot provides a high speed, parallel architecture
that extends the functionality and flexibility of the G3 series HMI. This
approach allows the G3 series to evolve concurrently with the latest advances in
communications and standards, without sacrificing performance. This high
bandwith channel has significantly greater throughput when compared to the
traditional (external) serial gateway approach.
The G3RS option card is easily installed by removing the rear cover of your
G3 operator interface, attaching the card using three screws and connecting a
single cable. Adding this card gives the operator interface another RS-232 port
and RS-422/485 port. It is built with isolation to protect equipment from
potentially harmful ground loops, and provides high speed RS-232, RS-422, RS-
485, and DH485 communications for many different types of hardware.
SPECIFICATIONS
MODEL G3RS
-
ISOLATED SERIAL EXPANSION CARD
1. POWER REQUIREMENTS: Power is supplied to the option card from the
main board of your G3 operator interface.
2. COMMUNICATIONS:
Serial Ports: Format and Baud Rates for each port are individually software
programmable up to 115,200 baud and are isolated to help prevent ground
loops. The RS-422/485 and DH485 port via RJ45 and the RS-232 port via
RJ12 share the same hardware.
DH485 TXEN: Transmit enable; open collector, VOH = 15 VDC, VOL = 0.5 VDC
Isolation from G3RS Communication ports to G3 operator interface:
1000 VDC for 1 minute.
3. CERTIFICATIONS AND COMPLIANCES:
Refer to “Agency Approvals” section of Red Lion’s website for agency
certifications.
4. ENVIRONMENTAL CONDITIONS:
Operating Temperature Range: 0 to 50°C
Storage Temperature Range: -20 to 80°C
Operating and Storage Humidity: 80% maximum relative humidity (non-
condensing) from 0 to 50°C.
Altitude: Up to 2000 meters.
CONFIGURED USING CRIMSON®SOFTWARE
DIGITALLY ISOLATED CANopen PORT
CAPABLE OF COMMUNICATING WITH ANY
CANopen DEVICE
EASY INSTALLATION
GENERAL DESCRIPTION
The G3 proprietary expansion slot provides a high speed, parallel architecture
that extends the functionality and flexibility of the G3 series HMI. This
approach allows the G3 series to evolve concurrently with the latest advances in
communications and standards, without sacrificing performance. This high
bandwidth channel has significantly greater throughput when compared to the
traditional (external) serial gateway approach.
The G3CN option card is easily installed by removing the rear cover of your
G3 operator interface, attaching the card using three screws and connecting a
single cable. Adding this card gives the operator interface a CANopen
communications port. It is built with digital isolation to protect the operator
interface from the CANopen/J1939 bus and vice versa. It provides the ability to
communicate to any high speed CANopen device. The G3CN option board has
a termination resistor built-in, and is selectable through a jumper setting. A
connector housing is provided to function as a strain relief for the wires that
terminate into the five position connector. The connector is pluggable for easy
removal of the G3 operator interface from the CANopen bus, without disturbing
communications with other devices on the bus.
SPECIFICATIONS
MODEL G3CN
-
CANOPEN/J1939
EXPANSION CARD
1. POWER REQUIREMENTS: Power is supplied to the option card from the
main board of your G3 operator interface.
2. COMMUNICATIONS:
CANopen Port: The CANopen port has format and baud rates that are
software programmable up to 1M baud and are digitally isolated. This port
may be configured for various CANopen protocols.
Isolation from G3CN Communication ports to G3 operator interface:
1000 VDC for 1 minute.
3. CERTIFICATIONS AND COMPLIANCES:
Refer to “Agency Approvals” section of Red Lion’s website for agency
certifications.
4. ENVIRONMENTAL CONDITIONS:
Operating Temperature Range: 0 to 50°C
Storage Temperature Range: -20 to 80°C
Operating and Storage Humidity: 80% maximum relative humidity (non-
condensing) from 0 to 50°C.
Altitude: Up to 2000 meters.
ORDERING INFORMATION
MODEL NO. DESCRIPTION PART NUMBER
G3RS G3RS0000
G3CN0000
CANopen option card for G3 operator interfaces
with isolated high speed communications ports
G3CN
PART NUMBERDESCRIPTIONMODEL NO.
RS-232/485 option card for G3 operator interfaces
with isolated high speed communications ports

38 www.redlion.net
ORDERING INFORMATION
CONFIGURED USING CRIMSON®SOFTWARE
DIGITALLY ISOLATED DeviceNet PORT
CAPABLE OF COMMUNICATING WITH ANY
DeviceNet MASTER
EASY INSTALLATION
GENERAL DESCRIPTION
The G3 proprietary expansion slot provides a high speed, parallel architecture
that extends the functionality and flexibility of the G3 series HMI. This
approach allows the G3 series to evolve concurrently with the latest advances in
communications and standards, without sacrificing performance. This high
bandwidth channel has significantly greater throughput when compared to the
traditional (external) serial gateway approach.
The G3DN option card is easily installed by removing the rear cover of your
G3 operator interface, attaching the card using three screws and connecting a
single cable. Adding this card gives the operator interface a DeviceNet slave
communications port. It is built with digital isolation to protect the operator
interface from the DeviceNet bus and vice versa. It provides the ability to
communicate to any DeviceNet master. A connector housing is provided to
function as a strain relief for the wires that terminate into the five position
connector. The connector is pluggable for easy removal of the G3 operator
interface from the DeviceNet bus, without disturbing communications with
other devices on the bus.
SPECIFICATIONS
MODEL G3DN
-
DEVICENET EXPANSION CARD
1. POWER REQUIREMENTS: Power is supplied to the option card from the
main board of your G3 operator interface.
2. COMMUNICATIONS:
DeviceNet Port: The DeviceNet port has format and baud rates that are
software programmable up to 500K baud and are digitally isolated. This
port may be configured for various DeviceNet protocols. Check
www.redlion.net/g3 for currently supported protocols.
Isolation from G3DN Communication ports to G3 operator interface:
1000 VDC for 1 minute.
3. CERTIFICATIONS AND COMPLIANCES:
Refer to “Agency Approvals” section of Red Lion’s website for agency
certifications.
4. ENVIRONMENTAL CONDITIONS:
Operating Temperature Range: 0 to 50°C
Storage Temperature Range: -20 to 80°C
Operating and Storage Humidity: 80% maximum relative humidity (non-
condensing) from 0 to 50°C.
Altitude: Up to 2000 meters.
ADDS PROFIBUS DP CONNECTIVITY TO
ANY G3 OPERATOR INTERFACE
EASY INSTALLATION
GENERAL DESCRIPTION
The G3 proprietary expansion slot provides a high speed, parallel architecture
that extends the functionality and flexibility of the G3 series HMI. This
approach allows the G3 series to evolve concurrently with the latest advances in
communications and standards, without sacrificing performance. This high
bandwidth channel has significantly greater throughput when compared to the
traditional (external) serial gateway approach.
The G3PB option card adds PROFIBUS DP connectivity to any G3 series
HMI. This allows a high speed exchange of blocks of data, at data rates up to 12
MBaud, between the hosting G3 and a Master PLC on a PROFIBUS network.
The DP suffix refers to “Decentralized Periphery”, which is used to describe
distributed I/O devices connected via a fast serial data link with a central
controller.
The card is easily installed by removing the rear cover of your G3 operator
interface, attaching the card using three screws and connecting a single cable.
SPECIFICATIONS
MODEL G3PB
-
PROFIBUS EXPANSION CARD
1. POWER REQUIREMENTS: Power is supplied to the option card from the
main board of your G3 operator interface.
2. COMMUNICATIONS:
PROFIBUS Port: FIELDBUS TYPE : PROFIBUS-DP EN 50 170, I. The
PROFIBUS port has a format and baud rates that are software
programmable up to 12M baud and are digitally isolated.
3. CERTIFICATIONS AND COMPLIANCES:
Refer to “Agency Approvals” section of Red Lion’s website for agency
certifications.
4. ENVIRONMENTAL CONDITIONS:
Operating Temperature Range: 0 to 50°C
Storage Temperature Range: -20 to 80°C
Operating and Storage Humidity: 80% maximum relative humidity (non-
condensing) from 0 to 50°C.
Altitude: Up to 2000 meters.
ORDERING INFORMATION
G3DN0000
DeviceNet option card for G3 operator interfaces
with isolated high speed communications ports
G3DN
PART NUMBERDESCRIPTIONMODEL NO.
G3PBDP00PROFIBUS option card for G3 operator interfacesG3PB
PART NUMBERDESCRIPTIONMODEL NO.

391-717-767-6511
ORDERING INFORMATION
GSM/GPRS CAPABILITY
SMS TEXT MESSAGING
E-MAIL AND FTP
GLOBAL OPERATION
CONFIGURED USING CRIMSON®SOFTWARE
EASY INSTALLATION
GENERAL DESCRIPTION
The G3GSM option card allows the user to add GSM/GPRS cellular modem
capability to their G3 operator interface terminal. GSM/GPRS is the most
prevalent cellular technology in today's markets. GPRS can be used for services
such as Wireless Application Protocol (WAP) access, Short Message Service
(SMS), and for Internet communication services such as email and World Wide
Web access. The G3GSM modem option card is quad-band, allowing it to work
in frequencies across Americas, Europe and Asia. US and Canada work in the
850/1900 MHz bands, while Europe, Middle East, Africa and most of Asia work
in the 900/1800 MHz GSM/GPRS frequencies.
The G3GSM requires the addition of a SIM (Subscriber Identity Module)
card, which is inserted into the holder prior to installation of the G3GSM card.
The SIM card securely stores the service-subscriber key (IMSI) used to identify
a subscriber, and is used to connect to the network to obtain an IP address from
the provider.
SPECIFICATIONS
MODEL G3GSM
-
CELLULAR MODEM EXPANSION CARD
1. POWER REQUIREMENTS: 24 VDC ± 20%; 0.25A max; 0.25A typical
(independent from the host G3 power connection). Must use Class 2 or SELV
rated power supply.
2. ANTENNA CONNECTOR:
SMA Female connector requires:
50 Ohm antenna with SMA male connector
Quad-band antenna (850/900/1800/1900 MHz) for global support.
Dual-band (850/1900 MHz) antenna for US and Canada only
Dual band (900/1800 MHz) for Europe only
The antenna cable should be 50Ωimpedance, RG178/U or RG174/U type
and be able to connect to the RSMA (Male) jack bulkhead. The antenna
could be horizontal, vertical or right angled. Longer antenna cable would
equate to signal loss.
3. CERTIFICATIONS AND COMPLIANCES:
Refer to “Agency Approvals” section of Red Lion’s website for agency
certifications.
4. ENVIRONMENTAL CONDITIONS:
Operating Temperature Range: 0 to 50°C
Storage Temperature Range: -20 to 80°C
Operating and Storage Humidity: 80% maximum relative humidity (non-
condensing) from 0 to 50°C.
Altitude: Up to 2000 meters.
G3GSM000G3GSM
PART NUMBERDESCRIPTIONMODEL NO.
GSM/GPRS Modem Option Card for G3 operator
interface

40 www.redlion.net
This page intentionally left blank.

411-717-767-6511
DATA
STATION
PLUS
SERIES
CONVERTS NUMEROUS PROTOCOLS SIMULTANEOUSLY
COMPACTFLASH®SLOT ALLOWS PROCESS DATA TO BE
LOGGED DIRECTLY TO CSV FILES
WEB-BASED HMI OFFERS BUILT-IN PC-BASED SCADA
FUNCTIONALITY
WEBSERVER PROVIDES WORLDWIDE ACCESS TO DATA LOGS
AND WEB-BASED HMI
EXTENSIVE BUILT-IN DRIVER LIST ALLOWS EASY DATA
MAPPING TO PLCs, PCs, AND SCADA SYSTEMS
10 BASE-T/100BASE-TX ETHERNET PORT SUPPORTS FOUR
SIMULTANEOUS PROTOCOLS
INDEPENDENT SERIAL PORTS PROVIDE VIRTUALLY
UNLIMITED INTEGRATION METHODS
ALARM NOTIFICATIONS CAN BE SENT VIA EMAIL OR TEXT
MESSAGES
SUPPORTS UP TO NINE PROTOCOLS SIMULTANEOUSLY
GENERAL DESCRIPTION
The Data Station Plus was designed to act as a nexus for industrial data
collection and management. The unit offers multiple protocol conversion, data
logging and remote machine access. With three built in serial ports and a 10
Base-T/100 Base-TX Ethernet port, the unit performs protocol conversion,
allowing disparate devices to communicate seamlessly with one another. The
Ethernet port supports up to four protocols simultaneously so even Ethernet to
Ethernet protocols can be converted.
The CompactFlash card allows data to be collected and stored for later
review. The files are stored in simple CSV file format allowing common
applications, such as Microsoft Excel and Access, to view and manage the data.
The free Websync utility provides a means to synchronize the files with a PC’s
hard drive for permanent storage. The CompactFlash card may also be used to
load new configuration files into the Data Station.
The built-in web server allows log files to be retrieved manually, and also
provides access to the unique web-based HMI”. The web-based HMI is
programmed just like Red Lion’s G3 series of HMI. Any standard web browser
such as Internet Explorer or Netscape may be used to monitor or control the
HMI from a PC anywhere in the world.
The USB port may be used for blazing fast file downloads, or to mount the
Data Station’s CompactFlash card as an external drive to your PC. The Data
Station’s DIN rail mounting saves time and panel space and snaps easily onto
standard top hat (T) profile DIN rail.
SPECIFICATIONS
1. POWER: 24 VDC ± 10%
200 mA min., without expansion card
1 Amp maximum with expansion card fitted
2. COMMUNICATIONS:
USB/PG Port: USB 1.1. Device only using Type B connection.
Serial Ports: Format and Baud Rates for each port are individually software
programmable up to 115,200 baud.
RS-232/PG Port: RS-232 port via RJ12
COMMS Ports: RS-422/485 port via RJ45, and RS-232 port via RJ12
DH485 TXEN: Transmit enable; open collector, VOH = 15 VDC,
VOL = 0.5 V @ 25 mA max.
Ethernet Port: 10 BASE-T / 100 BASE-TX
RJ45 jack is wired as a NIC (Network Interface Card).
3. LEDs:
STS – Status LED indicates condition of Data Station.
TX/RX – Transmit/Receive LEDs show serial activity.
Ethernet – Link and activity LEDs.
CF – CompactFlash LED indicates card status and read/write activity
4. MEMORY:
On-board User Memory: 4 Mbytes of non-volatile Flash memory.
On-board SDRAM:
DSPLE and DSPSX: 2 Mbytes
DSPGT: 8 Mbytes
Memory Card: CompactFlash Type II slot for Type I and Type II cards.
Used for optional database storage only
5. REAL-TIME CLOCK: Typical accuracy is less than one min./month drift.
Battery: Lithium Coin Cell. Typical lifetime of 10 years at 25 ºC.
6. ENVIRONMENTAL CONDITIONS:
Operating Temperature Range: 0 to 50°C
Storage Temperature Range: -30 to +70°C
Operating and Storage Humidity: 80% max relative humidity,
non-condensing, from 0 to 50°C
Vibration According to IEC 68-2-6: Operational 5 to 150 Hz, in X, Y, Z
direction for 1.5 hours, 2 g’s.
Shock According to IEC 68-2-27: Operational 30 g, 11 msec in 3 directions.
Altitude: Up to 2000 meters
7. CERTIFICATIONS AND COMPLIANCES:
CE, UL Listed For use in Hazardous Locations: Class I, Division 2, Groups
A, B, C, and D
8. WEIGHT: 15.1 oz (456.4 g)
DIMENSIONS IN INCHES (MM)
MODEL DSP
FOR USE IN HAZARDOUS LOCATIONS:
Class I, Division 2, Groups A, B, C, and D
3PWL
PROGRAMMABLE
CONTROLLERS
C
C
US LISTED
US LISTED
UL
R
IND. CONT. EQ.
34AD

42 www.redlion.net
ORDERING INFORMATION
DATA STATION PLUS PORT PIN OUTS
ACCESSORIES
OPTIONAL COMMUNICATION CARD
Red Lion offers optional communication cards for
fieldbus communications. These communication cards will
allow your DSP to communicate with many of the popular
fieldbus protocols.
Red Lion is also offering a communications card for
additional RS-232 and RS-422/485 communications. See the
DSP Accessories section on page 59 for information about
these cards.
CABLES AND DRIVERS
Red Lion has a wide range of cables
and drivers for use with many different
communication types. A list of these
drivers and cables along with pin outs
is available from Red Lion’s website.
New cables and drivers are added on a
regular basis. If making your own
cable, refer to the “Data Station Port
Pin Outs” for wiring information.
Data Station Plus
TYPE
DSP DSPSX000
Data Station with multiple protocol converter, data logger, web
server with Virtual HMI up to QVGA (320 x 240) and expansion slot.
DSPGT000
DSPLE000
Data Station with multiple protocol converter, Comms, Ethernet and
expansion slot.
Data Station with multiple protocol converter, data logger, web
server with web-based HMI up to VGA (640 x 480) size and
expansion slot with increased SDRAM.
PART NUMBERDESCRIPTIONMODEL NO.

431-717-767-6511
MODULAR CONTROLLER SERIES
CONTROL AND MONITOR UP TO 256 I/O POINTS ANALOG OR
DIGITAL
CONTROL OF OTHER MODULES IN THE MODULAR
CONTROLLER SERIES
STORES MODULE CONFIGURATION INFORMATION, AND
AUTOMATICALLY REPROGRAMS REPLACED MODULES
EXTENSIVE BUILT-IN DRIVER LIST ALLOWS EASY DATA
MAPPING TO PLCs, PCs, AND SCADA SYSTEMS
INDEPENDENT SERIAL PORTS PROVIDE VIRTUALLY
UNLIMITED INTEGRATION METHODS
10 BASE-T/100 BASE-TX ETHERNET CONNECTION PROVIDES
NETWORKING CAPABILITY
SUPPORTS UP TO 16 MODULAR CONTROLLER SERIES
MODULES
SUPPORTED BY CRIMSON SOFTWARE
HOT SWAPPABLE MODULES
MULTI-ZONE PID CONTROL
DATA ACQUISITION FOR PC, PLC OR SCADA SYSTEMS
GENERAL DESCRIPTION
Red Lion’s Modular Controller series offers a cost-effective solution to
integrating multi-zone PID control, data acquisition and I/O into your PC, DCS
or PLC control system. The Modular Controller product line has all the features
of the Data Station Plus, while adding the ability to manage up to 32 zones of
PID control for analog and digital I/O. With capabilities to handle high I/O
counts between a minimum of 96 analog to a maximum of 224 digital I/O, the
Modular Controller series is ideal for complex multi-zone applications, such as
cold storage warehouses or other areas where large amounts of analog and
digital I/O are needed. The Modular Controller supports up to 16 hot-swappable
controller modules with automatic reprogramming, available with
configurations ranging from analog input and output, digital I/O, PID control,
strain gage and temperature input. Combined with enhanced communication,
protocol conversion, and data logging capabilities with web-based HMI and
remote alarm/text, Red Lion’s Modular Controller offers 24/7 monitoring
capabilities for process peace-of-mind.
SPECIFICATIONS
1. POWER: 24 VDC ± 10%
400 mA min. (1 module)
3 Amps max. (16 modules)
2. COMMUNICATIONS:
USB/PG Port: USB 1.1. Device only using Type B connection.
Serial Ports: Format and Baud Rates for each port are individually software
programmable up to 115,200 baud.
RS-232/PG Port: RS-232 port via RJ12
COMMS Ports: RS-422/485 port via RJ45, and RS-232 port via RJ12
DH485 TXEN: Transmit enable; open collector, VOH = 15 VDC,
VOL = 0.5 V @ 25 mA max.
Ethernet Port: 10 BASE-T / 100 BASE-TX
RJ45 jack is wired as a NIC (Network Interface Card).
3. LEDs:
STS – Status LED indicates condition of master.
TX/RX – Transmit/Receive LEDs show serial activity.
Ethernet – Link and activity LEDs.
4. MEMORY:
On-board User Memory: 4 Mbytes of non-volatile Flash memory.
On-board SDRAM: 2 Mbytes
5. ENVIRONMENTAL CONDITIONS:
Operating Temperature Range: 0 to 50°C
Storage Temperature Range: -30 to +70°C
Operating and Storage Humidity: 80% max relative humidity,
non-condensing, from 0 to 50°C
Vibration According to IEC 68-2-6: Operational 5 to 150 Hz, in X, Y, Z
direction for 1.5 hours, 2 g’s.
Shock According to IEC 68-2-27: Operational 25 g, 11 msec in 3 directions.
Altitude: Up to 2000 meters
6. CERTIFICATIONS AND COMPLIANCES:
CE, UL Listed
7. WEIGHT: 12.9oz (365.7g)
MODEL CSMSTRV2
DIMENSIONS IN INCHES (MM)
C
C
US LISTED
US LISTED
UL
R
IND. CONT. EQ.
34AD

44 www.redlion.net
ORDERING INFORMATION
MASTER PORT PIN OUTS
ACCESSORIES
CABLES AND DRIVERS
Red Lion has a wide range of cables
and drivers for use with many different
communication types. A list of these
drivers and cables along with pin outs is
available from Red Lion’s website.
New cables and drivers are added on a
regular basis. If making your own
cable, refer to the “Master Port Pin
Outs” for wiring information.
Modular Controller Master, Comms, EthernetMaster Module CSMSTRV2CSMSTR
DESCRIPTIONMODEL NO.TYPE PART NUMBER

451-717-767-6511
ADDS MULTIPLE PROTOCOL CONVERSION FUNCTIONALITY
TO DATA ACQUISITION AND MULTI-ZONE PID CONTROL
APPLICATIONS
PERFORMS HIERARCHICAL CONTROL OF OTHER MODULES
IN THE MODULAR CONTROLLER SERIES
STORES MODULE CONFIGURATION INFORMATION, AND
AUTOMATICALLY REPROGRAMS REPLACED MODULES
EXTENSIVE BUILT-IN DRIVER LIST ALLOWS EASY DATA
MAPPING TO PLCs, PCs, AND SCADA SYSTEMS
INDEPENDENT SERIAL PORTS PROVIDE VIRTUALLY
UNLIMITED INTEGRATION METHODS
10 BASE-T/100 BASE-TX ETHERNET CONNECTION PROVIDES
NETWORKING CAPABILITY
SUPPORTS UP TO 16 MODULAR CONTROLLER SERIES
MODULES
SUPPORTS UP TO NINE PROTOCOLS SIMULTANEOUSLY(with
expansion card)
GENERAL DESCRIPTION
The Model CSMSTRLE is a communications and control platform designed
for use with Modular Controller Series slave modules. The CSMSTR uses a
proprietary high speed serial protocol to communicate, via backplane
connection, with up to 16 slave modules. Through the same connection, the
Master also provides power to the modules.
When powered up, the CSMSTR automatically identifies and addresses
connected slave modules. By storing the configuration information of all of the
modules, the CSMSTR is able to automatically configure modules if they are
replaced.
The Master provides high-speed RS-232/422/485 communication ports and
an Ethernet port for connection to PCs, PLCs, and SCADA systems. An
extensive list of master and slave protocol drivers are available to allow the
CSMSTR to share and exchange variable data with external devices. The 10
Base-T/100 Base-TX Ethernet port can also be used to connect and share data
with other devices at high speeds.
SPECIFICATIONS
1. POWER: 24 VDC ± 10%
400 mA min. (1 module)
3.5 Amps max. (16 modules + Expansion Card)
2. COMMUNICATIONS:
USB/PG Port: USB 1.1. Device only using Type B connection.
Serial Ports: Format and Baud Rates for each port are individually software
programmable up to 115,200 baud.
RS-232/PG Port: RS-232 port via RJ12
COMMS Ports: RS-422/485 port via RJ45, and RS-232 port via RJ12
DH485 TXEN: Transmit enable; open collector, VOH = 15 VDC,
VOL = 0.5 V @ 25 mA max.
Ethernet Port: 10 BASE-T / 100 BASE-TX
RJ45 jack is wired as a NIC (Network Interface Card).
3. LEDs:
STS – Status LED indicates condition of master.
TX/RX – Transmit/Receive LEDs show serial activity.
Ethernet – Link and activity LEDs.
CF – CompactFlash LED indicates card status and read/write activity
4. MEMORY:
On-board User Memory: 4 Mbytes of non-volatile Flash memory.
On-board SDRAM: 2 Mbytes
5. REAL-TIME CLOCK: Typical accuracy is less than one minute per month
drift.
Battery: Lithium Coin Cell. Typical lifetime of 10 years at 25 ºC.
6. ENVIRONMENTAL CONDITIONS:
Operating Temperature Range: 0 to 50°C
Storage Temperature Range: -30 to +70°C
Operating and Storage Humidity: 80% max relative humidity,
non-condensing, from 0 to 50°C
Vibration According to IEC 68-2-6: Operational 5 to 150 Hz, in X, Y, Z
direction for 1.5 hours, 2 g’s.
Shock According to IEC 68-2-27: Operational 25 g, 11 msec in 3 directions.
Altitude: Up to 2000 meters
7. CERTIFICATIONS AND COMPLIANCES:
CE, UL Listed
8. WEIGHT: 12.9oz (365.7g)
MODEL CSMSTRLE
DIMENSIONS IN INCHES (MM)
C
C
US LISTED
US LISTED
UL
R
IND. CONT. EQ.
34AD

46 www.redlion.net
PART NUMBERTYPE MODEL NO. DESCRIPTION
CSMSTRLE
Modular Controller Master with multiple protocol converter,
Ethernet, and expansion slot.
CSMSTRMaster Module
ACCESSORIES
OPTIONAL COMMUNICATION CARD
Red Lion offers optional communication cards for fieldbus
communications. These communication cards will allow
your CSMSTR to communicate with many of the popular
fieldbus protocols.
Red Lion is also offering a communications card for
additional RS-232 and RS-422/485 communications. See the
CSMSTR Accessories section on page 59 for information
about these cards.
CABLES AND DRIVERS
Red Lion has a wide range of cables
and drivers for use with many different
communication types. A list of these
drivers and cables along with pin outs
is available from Red Lion’s website.
New cables and drivers are added on a
regular basis. If making your own
cable, refer to the “Master Port Pin
Outs” for wiring information.
ORDERING INFORMATION
MASTER PORT PIN OUTS

471-717-767-6511
PROVIDES ENHANCED FEATURES FOR DATA ACQUISITION OR
MULTI-ZONE PID CONTROL APPLICATIONS
WEBSERVER PROVIDES WORLDWIDE ACCESS TO DATA LOGS
AND VIRTUAL HMI
WEB-BASED HMI OFFERS BUILT-IN PC-BASED SCADA
FUNCTIONALITY
PERFORMS HIERARCHICAL CONTROL OF OTHER MODULES
IN THE MODULAR CONTROLLER SERIES
STORES MODULE CONFIGURATION INFORMATION, AND
AUTOMATICALLY REPROGRAMS REPLACED MODULES
EXTENSIVE BUILT-IN DRIVER LIST ALLOWS EASY DATA
MAPPING TO PLCs, PCs, AND SCADA SYSTEMS
INDEPENDENT SERIAL PORTS PROVIDE VIRTUALLY
UNLIMITED INTEGRATION METHODS
10 BASE-T/100 BASE-TX ETHERNET CONNECTION PROVIDES
NETWORKING CAPABILITY
SUPPORTS UP TO 16 MODULAR CONTROLLER
SERIES MODULES
COMPACTFLASH®SLOT ALLOWS PROCESS DATA
TO BE LOGGED DIRECTLY TO CSV FILES
GENERAL DESCRIPTION
The Model CSMSTR is a communications and control platform designed for
use with Modular Controller Series slave modules. The CSMSTR uses a
proprietary high speed serial protocol to communicate, via backplane
connection, with up to 16 slave modules. Through the same connection, the
Master also provides power to the modules.
When powered up, the CSMSTR automatically identifies and addresses
connected slave modules. By storing the configuration information of all of the
modules, the CSMSTR is able to automatically configure modules if they are
replaced.
The Master provides high-speed RS-232/422/485 communication ports and
an Ethernet port for connection to PCs, PLCs, and SCADA systems. An
extensive list of master and slave protocol drivers are available to allow the
CSMSTR to share and exchange variable data with external devices. The 10
Base-T/100 Base-TX Ethernet port can also be used to connect and share data
with other devices at high speeds. The web-based HMI feature allows you to
create and control an HMI from any networked PC. An onboard CompactFlash
slot provides storage for the Master’s built-in data logger.
The design of the Modular Controller Series high density packaging and DIN
rail mounting saves time and panel space. The controller snaps easily onto
standard top hat (T) profile DIN rail.
SPECIFICATIONS
1. POWER: 24 VDC ± 10%
400 mA min. (1 module)
3.5 Amps max. (16 modules + Expansion Card)
2. COMMUNICATIONS:
USB/PG Port: USB 1.1. Device only using Type B connection.
Serial Ports: Format and Baud Rates for each port are individually software
programmable up to 115,200 baud.
RS-232/PG Port: RS-232 port via RJ12
COMMS Ports: RS-422/485 port via RJ45, and RS-232 port via RJ12
DH485 TXEN: Transmit enable; open collector, VOH = 15 VDC,
VOL = 0.5 V @ 25 mA max.
Ethernet Port: 10 BASE-T / 100 BASE-TX
RJ45 jack is wired as a NIC (Network Interface Card).
3. LEDs:
STS – Status LED indicates condition of master.
TX/RX – Transmit/Receive LEDs show serial activity.
Ethernet – Link and activity LEDs.
CF – CompactFlash LED indicates card status and read/write activity
4. MEMORY:
On-board User Memory: 4 Mbytes of non-volatile Flash memory.
On-board SDRAM:
CSMSTRSX: 2 Mbytes
CSMSTRGT: 8 Mbytes
Memory Card: CompactFlash Type II slot for Type I and Type II cards.
5. REAL-TIME CLOCK: Typical accuracy is less than one minute per month
drift. Crimson 2.0’s SNTP facility allows synchronization with external servers.
Battery: Lithium Coin Cell. Typical lifetime of 10 years at 25 ºC.
6. ENVIRONMENTAL CONDITIONS:
Operating Temperature Range: 0 to 50°C
Storage Temperature Range: -30 to +70°C
Operating and Storage Humidity: 80% max relative humidity,
non-condensing, from 0 to 50°C
Vibration According to IEC 68-2-6: Operational 10 to 150 Hz, 0.075 mm
amplitude in X, Y, Z direction for 1.5 hours, 2 g’s.
Shock According to IEC 68-2-27: Operational 25 g, 11 msec in 3 directions.
Altitude: Up to 2000 meters
7. CERTIFICATIONS AND COMPLIANCES:
CE, UL Listed
8. WEIGHT: 15.1 oz (456.4 g)
MODEL CSMSTRSX & CSMSTRGT
DIMENSIONS IN INCHES (MM)
C
C
US LISTED
US LISTED
UL
R
IND. CONT. EQ.
34AD

48 www.redlion.net
ACCESSORIES
OPTIONAL COMMUNICATION CARD
Red Lion offers optional communication cards for fieldbus
communications. These communication cards will allow
your CSMSTR to communicate with many of the popular
fieldbus protocols.
Red Lion is also offering a communications card for
additional RS-232 and RS-422/485 communications. See the
CSMSTR Accessories section on page 59 for information
about these cards.
CABLES AND DRIVERS
Red Lion has a wide range of cables
and drivers for use with many different
communication types. A list of these
drivers and cables along with pin outs
is available from Red Lion’s website.
New cables and drivers are added on a
regular basis. If making your own
cable, refer to the “Master Port Pin
Outs” for wiring information.
ORDERING INFORMATION
MASTER PORT PIN OUTS
Master Module
CSMSTRGT
Modular Controller Master with multiple protocol converter, data logger, web
server with web-based HMI up to VGA (640 x 480) size and expansion slot
with increased SDRAM.
CSMSTR
Modular Controller Master with multiple protocol converter, data logger, web
server with web-based HMI up to QVGA (320 x 240) size and expansion slot. CSMSTRSX
DESCRIPTIONMODEL NO.TYPE PART NUMBER

491-717-767-6511
DEDICATED SINGLE AND DUAL PID MODULES FOR THE
MODULAR CONTROLLER SERIES
HOT-SWAPPABLE REPLACEMENT REDUCES DOWNTIME
AUTO ADDRESSING MINIMIZES CONFIGURATION TIME
FULLY ISOLATED DESIGN PROVIDES RELIABLE OPERATION
PID CONTROL WITH REDUCED OVERSHOOT
UNIVERSAL INPUTS ACCEPT TC, RTD, 0-10 V and 0/4-20 mA
SIGNALS
ON DEMAND AUTO-TUNING OF PID SETTINGS
DC ANALOG OUTPUT (OPTIONAL, CSPID1 ONLY)
HEATER CURRENT INPUT (OPTIONAL) ENSURES DETECTION
OF HEATER CIRCUIT FAILURE
GENERAL DESCRIPTION
The Model CSPID series modules are full featured PID controllers designed
for use with the Modular Controller Series. The CSPID1 is a single loop
controller, while the CSPID2 is a dual loop controller. The design of the system
provides a true modular PID control platform for multi-zone control
applications. The modules can accept a wide range of thermocouple, RTD, 0-10
V, 0/4-20 mA signals. With multiple discrete outputs, plus an optional analog
output (CSPID1 only), the CSPID modules can perform virtually any
combination of time-proportioning or linear control for heat, cool, or heat/cool
applications. The discrete outputs may also be assigned to one of seven internal
soft alarms. The CSPID1’s optional linear output can be assigned to transmit
virtually any internal variable.
The CSPID modules connect and communicate via a backplane connection to
the CSMSTR Modular Controller Series Master. The CSMSTR, equipped with
serial ports as well as an Ethernet port, allows the system to share data with PCs,
PLCs, and SCADA systems. The Master supports any combination of up to 16
CS Series modules.
The modules can operate in On/Off, P, PI, or PID control mode, and use an
on-demand Auto-Tune that establishes the tuning constants. The PID constants
may be fine-tuned through the serial or Ethernet interface. The modules employ
a unique overshoot suppression feature, which allows the quickest response
without excessive overshoot. The modules can also be operated in manual mode,
providing the operator with direct control of the output.
SPECIFICATIONS
1. POWER: Derived from system backplane. (CSPID1 draws 150 mA max. load
on power input of MASTER, CSPID2 draws 125 mA max). Modules may be
hot-swapped (Replaced while powered up).
2. LEDs*:
STS - Status LED shows module condition
OP1, OP2, OP3, OP4 - Indicate status of outputs 1, 2, 3, and 4
ALM, or AL1 and AL2 - Alarm LEDs are lit during any internal alarm condition
3. MEMORY: Non-volatile memory retains all programmable parameters.
4. INPUT:
GENERAL:
Sample Time: 67 msec (15 Hz)
Common Mode Rejection: >110 dB, 50/60 Hz
Normal Mode Rejection: >40 dB, 50/60 Hz
Temperature Coefficient: 0.01%/°C
Step Response Time: 200 msec typ., 250 msec max
THERMOCOUPLE INPUTS:
Types: T, E, J, K, R, S, B, N, C
Input Impedance: 20 M Ω
Lead Resistance Effect: 0.25 μV/Ω
Cold Junction Compensation: Less than ±1°C typical (±1.5°C max) over 0
to 50 °C ambient temperature
Resolution: 0.1°
RTD INPUTS:
Type: 2 or 3 wire
Excitation: 150 μA
Lead Resistance: 15 ΩMax
Resolution: 1 or 0.1°
PROCESS INPUT:
5. COMMUNICATIONS: Provided by the CS Master
6. A/D CONVERTER: 16 bit resolution
7. DISCRETE OUTPUTS:
CSPID1: Outputs 1 and 2 available as Solid State NFET, Form A relay or
Triac. Output 3 is a Form C relay.
CSPID2: Outputs 1 through 4 available as Form A relay, Solid State NFET,
or Triac.
Solid State Output:
Type: Switched DC, N Channel open drain MOSFET
Current Rating: 1 A max
VDS ON: 0.3 V @ 1 A
VDS MAX: 30 VDC
Offstate Leakage Current: 0.5 mA max
MODEL CSPID - SINGLE AND DUAL LOOP PID MODULES
DIMENSIONS IN INCHES (MM)
C
C
US LISTED
US LISTED
UL
R
IND. CONT. EQ.
34AD
16 bit100 mA10 Ohm0.1% span20 mA
16 bit50 V1 M Ohm0.1% span10 V
RESOLUTION
MAX CONTINUOUS
OVERLOAD
IMPEDANCE
ACCURACY
(18 TO 28 °C)
INPUT RANGE

50 www.redlion.net
ORDERING INFORMATION
BLOCK DIAGRAM
PART NUMBERTYPE MODEL NO. DESCRIPTION
CSPID2R0
CSPID1R0
CSPID1TA
Single Loop PID
Control Modules
Dual Loop PID
Control Modules CSPID2
CSPID1
Dual Loop Module, Relay Outputs
Single Loop Module, Relay Outputs
Single Loop Module, Triac Outputs, Analog Output
CSPID2RM
CSPID1RA
Dual Loop Module, Relay Outputs, Heater Current Input
Single Loop Module, Relay Outputs, Analog Output
CSPID2S0
CSPID1RM
Dual Loop Module, Solid State Outputs
Single Loop Module, Relay Outputs, Heater Current Input
CSPID2SM
CSPID1S0
Dual Loop Module, Solid State Outputs, Heater Current Input
Single Loop Module, Solid State Outputs
CSPID2T0
CSPID1SA
Dual Loop Module, Triac Outputs
Single Loop Module, Solid State Outputs, Analog Output
CSPID2TM
CSPID1SM
Dual Loop Module, Triac Outputs, Heater Current Input
Single Loop Module, Solid State Outputs, Heater Current Input
Form A Relay Output:
Type: N.O.
Current Rating: 3 Amps @ 125 VAC
1/10 HP @ 125 VAC
Life Expectancy: 200,000 cycles at maximum load rating.
Form C Relay Output:
Type: SPDT
Current Rating: 5 Amps @ 125 VAC or 28 VDC (resistive load)
1/8 HP @ 125 VAC
Life Expectancy: 100,000 cycles at maximum load rating.
Triac: (CSPID1TA only)
Type: Optically isolated, zero-crossing detection
Rating: 120 VAC, Min: 20 VAC
Max Load Current: 1.0 A across Operating Temperature Range
Min Load Current: 5 mA
Offstate Leakage Current: 1 mA Max
Operating Frequency: 20 to 400 Hz
Protection: Internal Transient Suppression, Fused
Triac: (CSPID2T0 and CSPID2TM only)
Type: Optically isolated, zero-crossing detection
Rating: 120 VAC, Min: 20 VAC
Max Load Current: 0.5A @ 25°C, 0.4A @ 50°C
Min Load Current: 5 mA
Offstate Leakage Current: 1 mA Max
Operating Frequency: 20 to 500 Hz
Protection: Internal Transient Suppression, Fused
8. CONTROL MODES:
Control: On/Off, P, PI, or PID
Output: Time proportioning or linear (CSPID1 only)
Cycle Time: Programmable from 0.0 to 60.0 sec
Auto-Tune: When selected, sets proportional band, integral time, derivative
time values, and output dampening time
Probe Break Action: Programmable response
Sensor Fail Response: Upscale
9. ALARMS:
Modes:
Reset Action: Programmable; automatic or latched
Standby Mode: Programmable; enable or disable
Hysteresis: Programmable
Sensor Fail Response: Upscale
10. ENVIRONMENTAL CONDITIONS:
Operating Temperature Range: 0 to +50°C
Storage Temperature Range: -40 to +85°C
Operating and Storage Humidity: 85% max relative humidity, non-
condensing, from 0 to +50°C
Vibration According to IEC 68-2-6: 10 to 150 Hz, 0.075 mm amplitude in
X, Y, Z direction 1 g.
Shock According to IEC 68-2-27: Operational 25 g (10g relay), 11 msec in 3
directions.
11. CERTIFICATIONS AND COMPLIANCES:
CE, UL Listed
12. WEIGHT: 7 oz (198.4 g)
Manual
Absolute High Acting Absolute Low Acting
Deviation High Acting Deviation Low Acting
Inside Band Acting Outside Band Acting

511-717-767-6511
HOT-SWAPPABLE REPLACEMENT REDUCES DOWNTIME
AUTO ADDRESSING MINIMIZES CONFIGURATION TIME
PID CONTROL WITH REDUCED OVERSHOOT
LOAD CELL, PRESSURE AND TORQUE BRIDGE INPUTS
SOFTWARE SELECTABLE LOW LEVEL INPUTS
SOFTWARE SELECTABLE 5 VDC or 10 VDC BRIDGE EXCITATION
DIGITAL TARE (re-zero), BATCH TOTALIZER, AND PEAK/VALLEY
(max/min) RECORDING
ON DEMAND AUTO-TUNING OF PID SETTINGS
DC ANALOG OUTPUT
GENERAL DESCRIPTION
The Model CSSG is a full featured single loop PID controller designed for
use with the Modular Controller Series. The module accepts low level signals
from a variety of bridge-type transducers, such as load cells, pressure
transducers, torque transducers, etc. An optional second signal input is available,
providing math capabilities between the two input channels (average,
differential, etc.). Each input channel provides a software selectable 5 V or 10 V
stable bridge excitation voltage, capable of driving up to four 350 Ωbridges
(combined total per module). The inputs are software selectable for ±20 mV, ±33
mV, or ±200 mV full scale. With solid state or relay outputs, plus an analog
output, the CSSG module can perform virtually any combination of time-
proportioning or linear control. The discrete outputs may also be assigned to one
of seven internal soft alarms; and the linear output can be assigned to transmit
virtually any internal variable. In addition, digital tare (re-zero), batch totalizer,
and peak/valley (max/min) are provided.
The CSSG modules are available with relays, or open drain MOSFET
outputs. For applications requiring large loads to be controlled, several DIN rail
mount relays are available.
Internal power management circuits allow the modules to be replaced while
power is applied, which reduces downtime in the event of a relay failure. All
configuration information is stored locally within each module, as well as in the
Master, so replacement modules do not need to be configured.
The Modular Controller Series’ high density packaging and DIN rail
mounting saves time and panel space. The backplane connection provides power
and communication to the module and snaps easily onto standard top hat (T)
profile DIN rail.
SPECIFICATIONS
1. POWER: Derived from system backplane. 250 mA max. load on power input
of MASTER. Module may be hot-swapped (replaced while powered up).
Modules per Master: A single Master can support up to 11 CSSG1 modules
combined with any 5 other module types. For applications that require
more than 11 CSSG1 modules, please contact technical support.
2. LEDs*:
STS - Status LED shows module condition.
OP1, OP2, OP3 - Indicate status of outputs 1, 2, and 3
ALM - Alarm LED is lit during an internal alarm condition.
* Default configuration.
3. MEMORY: Non-volatile memory retains all programmable parameters. The
MASTER also stores the parameters in order to reprogram any modules that
are replaced.
4. INPUTS:
* After 20 minute warm-up. Accuracy over the 0 to 50°C range includes
the temperature coefficient.
Connection Type:
4-wire bridge (differential)
2-wire (single-ended)
Sample Time: 67 msec (15 readings per second)
Common Mode Range (with respect to input common): 0 to +5 VDC
Common Mode Rejection: > 100 dB, DC to 120 Hz
Temperature Coefficient (ratio metric): 20 ppm/°C max.
Step Response Time: 200 msec max. to within 99% of final process value
Input Impedance: 100 MΩ
Max Continuous Overload: 30 V
PV Range: -30,000 to 30,000
Effective Resolution: 16-bit
5. BRIDGE EXCITATIONS:
Software selectable:
5 VDC, ±2%, 65 mA max.
10 VDC, ±2%, 125 mA max. combined (excitation 1 plus excitation 2).
Temperature coefficient (ratio metric): 20 ppm/°C max.
Max. four 350Ωbridges per module.
6. COMMUNICATIONS: Provided by the CS Master.
7. DISCRETE OUTPUTS:
Outputs 1 and 2 are available as Solid State NFET, or Form A relay. Output 3
is a Form C relay.
Solid State Output:
Type: Switched DC, N Channel open drain MOSFET
MODEL CSSG
-
STRAIN GAGE MODULE
DIMENSIONS IN INCHES (MM)
C
C
US LISTED
US LISTED
UL
R
IND. CONT. EQ.
34AD
0.07% of reading +4 µV0.02% of reading +3 µV±20.000 mVDC
0.07% of reading +40 µV0.02% of reading +30 µV±200.00 mVDC
0.07% of reading +7 µV0.02% of reading +5 µV±33.000 mVDC
ACCURACY *
0 TO 50°C
0 TO 85% RH
ACCURACY *
18 TO 28°C
10 TO 75% RH
SOFTWARE
SELECTABLE
INPUT RANGE

52 www.redlion.net
ORDERING INFORMATION
BLOCK DIAGRAM
Single Loop, Two SG Inputs, Relay Outputs, Analog Out
Single Loop, One SG Input, Solid State Outputs, Analog Out
Single Loop, Two SG Inputs, Solid State Outputs, Analog Out
CSSG1
CSSG10RA
CSSG11RA
CSSG10SA
CSSG11SA
DESCRIPTIONMODEL NO.TYPE PART NUMBER
Strain Gage
Control Modules
Single Loop, One SG Input, Relay Outputs, Analog Out
Current Rating: 1 A max
VDS ON: 0.3 V @ 1 A
VDS MAX: 30 VDC
Offstate Leakage Current: 0.5 mA max
Form A Relay Output:
Type: N.O.
Current Rating: 3 Amps @ 125 VAC
1/10 HP @ 125 VAC
Life Expectancy: 200,000 cycles at maximum load rating. (Decreasing
load, increasing cycle time, and use of surge suppression such as RC
snubbers increases life expectancy.)
Form C Relay Output:
Type: SPDT
Current Rating: 5 Amps @ 125 VAC or 28 VDC (resistive load)
1/8 HP @ 125 VAC
Life Expectancy: 100,000 cycles at maximum load rating. (Decreasing
load, increasing cycle time, and use of surge suppression such as RC
snubbers increases life expectancy.)
8. CONTROL MODES:
Control: On/Off, P, PI, or PID
Output: Time proportioning or linear
Cycle Time: Programmable from 0.0 to 60.0 sec
Auto-Tune: When selected, sets proportional band, integral time, derivative
time values, and output dampening time
Input Fault Response: Upscale
9. ALARMS:
Modes:
Manual
Absolute High Acting Absolute Low Acting
Deviation High Acting Deviation Low Acting
Inside Band Acting Outside Band Acting
Reset Action: Programmable; automatic or latched
Standby Mode: Programmable; enable or disable
Hysteresis: Programmable
Input Fault Response: Upscale
10. ANALOG DC OUTPUT:
Jumper Selectable/programmable for 0-10 VDC, 0-20 mA, or 4-20 mA
Resolution:
Voltage: 500 μV
Current: 1 μA
Accuracy:
0.1% of full scale (18 to 28°C)
0.2% of full scale (0 to 50°C)
Update Time: 0.0 to 60.0 sec
Compliance (for current output only): 500 Ωmax.
Minimum load (voltage output only): 10 KΩmin.
Output is independently jumper selectable for either 10 V or 20 mA. The
output range may be field calibrated to yield approximate 10% overrange
and a small underrange (negative) signal.
11. CERTIFICATIONS AND COMPLIANCES:
CE, UL Listed
12. WEIGHT: 7 oz (198.4 g)

531-717-767-6511
MODELS AVAILABLE TO ACCEPT ±10 V, 0/4-20 mA,
THERMOCOUPLE AND RTD INPUTS
±10 V AND 0/4-20 mA INPUT VERSIONS FULLY SCALABLE
±10 V AND 0/4-20 mA INPUT VERSIONS AVAILABLE WITH 100
POINT LINEARIZATION
UNUSED INPUTS CAN BE DISABLED TO INCREASE OVERALL
READING RATE
IDEAL FOR DATA-ACQUISITION APPLICATIONS
AUTO ADDRESSING MINIMIZES CONFIGURATION TIME
CAN BE USED IN CONJUNCTION WITH ANY CS SERIES
MODULES
GENERAL DESCRIPTION
The Model CSTC, CSRTD, CSINI, and CSINV are 16-bit analog input
modules designed for use with the Modular Controller Series. These modules
provide a means of high-density signal measurement for data-acquisition
applications. The CSTC module accepts a wide range of thermocouple types,
while the CSRTD accepts various RTD inputs. The CSINI and CSINV accept
0/4-20 mA and ±10 V process signals, respectively.
The modules connect and communicate via a backplane connection to the
CSMSTR Modular Controller Series Master. The CSMSTR, equipped with serial
ports as well as an Ethernet port, allows the system to share data with PCs, PLCs,
and SCADA systems. The Master supports any combination of up to 16 CS series
modules, allowing a total of 128 signals to be monitored via a single Master.
Internal power management circuits allow the modules to be replaced while
power is applied, which reduces downtime. All configuration information is
stored locally within the module, as well as in the Master, so replacement
modules do not need to be configured.
The Modular Controller Series’ high density packaging and DIN rail
mounting saves time and panel space. The backplane connection provides power
and communication to the module and snaps easily onto standard top hat (T)
profile DIN rail.
SPECIFICATIONS
MODELS CSTC,
CSRTD,
CSINI
AND CSINV
-
HIGH DENSITY TEMP AND ANALOG INPUT MODULES
DIMENSIONS IN INCHES (MM)
C
C
US LISTED
US LISTED
UL
R
IND. CONT. EQ.
34AD
GENERAL
1. POWER: Derived from system backplane. (75 mA load on power input of
MASTER). Module may be hot-swapped (replaced while powered up).
2. LEDs:
STS - Status LED shows module condition.
ALM - Alarm LED is lit during any internal alarm condition.
3. MEMORY: Non-volatile memory retains all programmable parameters.
MASTER also stores the parameters in order to reprogram modules that are
replaced.
4. ISOLATION LEVEL: 500 Vrms @ 50/60 Hz for 1 minute between the
Signal Inputs and the CS Master Power Supply Input.
5. COMMUNICATIONS: Provided by the CS Master
6. CERTIFICATIONS AND COMPLIANCES:
CE, UL Listed
7. WEIGHT: 6 oz (170.1 g)
CSTC8 SPECIFICATIONS
1. INPUTS:
Channels: 8 single-ended
Effective Resolution: Full 16-bit
Sample Time: 50 msec - 400 msec, depending on number of enabled inputs.
Common Mode Rejection: >110 dB, 50/60 Hz
Normal Mode Rejection: >90 dB, 50/60 Hz
Temperature Coefficient: 0.01%/°C
Step Response Time: One scan time (to within 99% of final value)
Types: T, E, J, K, R, S, B, N, C
Slope & Offset: Provides sensor error correction
Input Impedance: 20 M Ω
Lead Resistance Effect: 0.25 μV/Ω
Cold Junction Compensation: Less than ±1°C typical (±1.5°C max) over 0 to
50 °C ambient temperature
Resolution: 0.1°
2. TEMPERATURE INDICATION ACCURACY: ± (0.3% of span, +1°C).
3. PROBE BREAK RESPONSE: Upscale drive, Input Fault Alarm bit set high,
ALM LED illuminates.
CSRTD6 SPECIFICATIONS
1. RTD INPUTS:
Channels: 6 single-ended
Effective Resolution: Full 16-bit
Sample Time: 67 msec - 400 msec, depending on enabled inputs.
Common Mode Rejection: >110 dB, 50/60 Hz
Normal Mode Rejection: >90 dB, 50/60 Hz
Temperature Coefficient: 0.01%/°C

54 www.redlion.net
ORDERING INFORMATION
BLOCK DIAGRAM
Step Response Time: One scan time (to within 99% of final value)
Type: 2 or 3 wire; 100 Ωplatinum, Alpha = .00385 and .003919, and 120 Ω
nickel, Alpha = .00672
Excitation: 150μA
Lead Resistance: 15 ΩMax
Resolution: 0.1°
Slope & Offset: Provides sensor error correction
2. TEMPERATURE INDICATION ACCURACY: ± (0.1% of span) over 18
to 28°C environment, ± (0.2% of span) over 0 to 50°C environment.
3. PROBE BREAK RESPONSE: If channel is enabled: upscale drive, Input
Fault Alarm bit set high, ALM LED illuminates.
CSINI8 SPECIFICATIONS
1. INPUTS:
Channels: 8 single-ended
Ranges: 0-20 mA or 4-20 mA
Effective Resolution: Full 16-bit
Programmable Scaling: ±30,000
Linearizer: 100 Points (CSINI8L0 only)
Sample Time: 50 msec - 400 msec, depending on number of enabled inputs.
Common Mode Rejection: >110 dB, 50/60 Hz
Normal Mode Rejection: >90 dB, 50/60 Hz
Step Response Time: One scan time (to within 99% of final value)
Input Impedance: 10 Ω
Max. Continuous Overload: 100 mA
2. ACCURACY: ±0.1% of span
3. INPUT FAULT RESPONSE: Upscale Drive, Input Fault Alarm bit set high,
ALM LED illuminates below -3 mA, and above 23 mA for 0-20 mA range;
below +3 mA and above 23 mA for 4-20 mA signals.
CSINV8 SPECIFICATIONS
1. INPUTS:
Channels: 8 single-ended
Ranges: 0-10 VDC or ±10 VDC
Effective Resolution: Full 16-bit
Programmable Scaling: ±30,000
Linearizer: 100 Points (CSINV8L0 only)
Sample Time: 50 msec - 400 msec, depending on number of enabled inputs.
Common Mode Rejection: >110 dB, 50/60 Hz
Normal Mode Rejection: >90 dB, 50/60 Hz
Step Response Time: One scan time (to within 99% of final value)
Input Impedance: 10 M Ω
Max. Continuous Overload: 50 V
2. ACCURACY: ±0.1% of span
3. INPUT FAULT RESPONSE: Upscale Drive, Input Fault Alarm bit set high,
ALM LED illuminates below -10.4 VDC and above +10.4 VDC.
PART NUMBERTYPE MODEL NO. DESCRIPTION
RTD Input Modules
Voltage Input Modules
Current Input Modules
Thermocouple Input Modules
CSRTD
CSINV
CSTC
CSINI
CSTC8000
CSINI800
CSINI8L0
CSINV800
8 Channel Thermocouple Module
8 Channel 0(4)-20 mA Input Module
8 Channel 0(4)-20 mA Input Module, 100-Point Linearizer
8 Channel ±10 V Input Module
CSRTD600
CSINV8L0
6 Channel RTD Module
8 Channel ±10 V Input Module, 100-Point Linearizer

551-717-767-6511
ADDS REMOTE I/O CAPABILITY TO THE MODULAR
CONTROLLER SERIES
EIGHT INPUT, SIX OUTPUT DIGITAL MODULE
INPUTS ISOLATED FROM OUTPUTS
INPUTS INDEPENDENTLY SWITCH SELECTABLE FOR SINK OR
SOURCE SIGNALS
INPUTS INDEPENDENTLY CONFIGURABLE FOR HIGH OR LOW
ACTIVE STATE
INPUTS INDEPENDENTLY SWITCH SELECTABLE FOR HIGH OR
LOW FREQUENCY SIGNALS
RELAY OR NFET OUTPUT MODELS AVAILABLE
GENERAL DESCRIPTION
The Model CSDIO series modules are digital I/O modules designed for use
with the Modular Controller Series. The CSDIO14 offers eight inputs and six
outputs that can be used to monitor contact or sensor inputs and actuate relays,
solenoids, PLC inputs, etc.
The inputs accept standard DC inputs or contact closures, and are configured
for Sink/Source signals via external switches. Additionally, each input has a
switch selectable input filter that can be used to prevent contact bounce. Each
input may also be software configured as a high-active or low-active input.
The modules are available with relay or NFET outputs that are capable of
switching up to one amp each (NFET DC only). For applications requiring large
loads to be controlled, several DIN rail mount relays are available.
The CSDIO modules connect and communicate via a backplane connection
to the CSMSTR Modular Controller Series Master. The CSMSTR, equipped
with serial ports as well as an Ethernet port, allows the system to share data with
PCs, PLCs, and SCADA systems. The Master supports any combination of up
to 16 CS Series modules.
Internal power management circuits allow the modules to be replaced while
power is applied, which reduces downtime in the event of a relay failure. All
configuration information is stored locally within each module, as well as in the
Master, so replacement modules do not need to be configured. The Modular
Controller Series’ high density packaging and DIN rail mounting saves time and
panel space. The backplane connection provides power and communication to
the module and snaps easily onto standard top hat (T) profile DIN rail.
SPECIFICATIONS
MODEL CSDIO - DIGITAL INPUT/OUTPUT MODULES
DIMENSIONS IN INCHES (MM)
C
C
US LISTED
US LISTED
UL
R
IND. CONT. EQ.
34AD
1. POWER: Derived from system backplane. (CSDIO draws 170 mA max. load
on power input of MASTER). Modules may be hot-swapped (replaced while
powered up).
2. LEDs:
STS - Status LED shows module condition.
IN1-IN8 - LEDs are lit when associated input is active.
OP1-OP6 - LEDs are lit when associated output is active.
ALM - Alarm LED is lit when an internal alarm condition exists.
3. MEMORY: Non-volatile memory retains all programmable parameters.
MASTER also stores the parameters in order to reprogram modules that
are replaced.
4. INPUTS: DIP switch selectable for sink or source
Maximum voltage: +30 VDC, reverse polarity protected
Off Voltage: < 1.2 Volts
On Voltage: > 3.8 Volts
Input Impedance: Source Mode 10K ohms; Sink Mode 20K ohms
Input Frequency*:
Filter switch on: 50 Hz
Filter switch off: 300 Hz
* Actual useable frequency limited by communication to external device.
5. OUTPUTS: Outputs available as FORM-A relay or Solid State NFET.
Form A Relay Output:
Type: N.O.
The following pairs of relays share the common terminal: 1&2, 3&4, 5&6
Current Rating by pair: 3 Amps @ 30 VDC / 125 VAC resistive
1/10 HP @ 125 VAC
Life Expectancy: 200,000 cycles at maximum load rating. (Decreasing
load, increasing cycle time, and use of surge suppression such as RC
snubbers increases life expectancy.)
Solid State Output:
Type: Switched DC, N Channel open drain MOSFET
Contact Rating: 1 ADC max
VDS ON: < 0.2 V @ 1 A
VDS MAX: 30 VDC
Offstate Leakage Current: 0.5 μA max
6. LOGIC (BOOLEAN) MODE:
Count Frequency: 200 Hz/input when input is directly connected (soft-wired)
to the counter.
Logic Propagation Delay: 400 msecs. max.
Timer Accuracy: 0.2%
7. ISOLATION LEVEL: 500 Vrms @ 50/60 Hz for 1 minute between the
following: Inputs
Outputs
CS Master Power Supply Input
8. COMMUNICATIONS: Provided by the CS Master
9. CERTIFICATIONS AND COMPLIANCES:
CE, UL Listed
10. WEIGHT: 6.6 oz (187.1 g)

56 www.redlion.net
PART NUMBERTYPE MODEL NO. DESCRIPTION
CSDIO14R
CSDIO14S
Digital I/O Modules CSDI014 Eight Inputs, Six Relay Outputs
Eight Inputs, Six Solid State Outputs
ORDERING INFORMATION
BLOCK DIAGRAM

571-717-767-6511
HIGH DENSITY ANALOG OUTPUT MODULE FOR THE MODULAR
CONTROLLER SERIES
AVAILABLE OUTPUTS INCLUDE 0 to 5 VDC, 0 to 10 VDC, ±10
VDC, AND 0/4-20 mA DC
OUTPUTS ARE ISOLATED FROM EACH OTHER AND FROM THE
BACKPLANE
OUTPUTS ARE SOFTWARE CONFIGURED AND FULLY
SCALABLE
AUTO ADDRESSING MINIMIZES CONFIGURATION TIME
CAN BE USED IN CONJUNCTION WITH ANY CS SERIES
MODULES
GENERAL DESCRIPTION
The model CSOUT is an analog output module designed for use with the
Modular Controller Series. The module provides four isolated outputs that are
independently programmable for output ranges of 0-5V, 0-10V, +/-10V, 0-
20mA, or 4-20mA. Internal scaling is provided to accommodate virtually any
application.
The modules connect and communicate via a backplane connection to the
CSMSTR Modular Controller Series Master. The CSMSTR, equipped with
serial ports as well as an Ethernet port, allows the system to share data with PCs,
PLCs, and SCADA systems. The Master supports up to 16 CS Series modules
(refer to the “Power” specifications).
Internal power management circuits allow the modules to be replaced while
power is applied, which reduces downtime. All configuration information is
stored locally within each module, as well as in the Master, so replacement
modules do not need to be configured.
The Modular Controller Series’ high density packaging and DIN rail
mounting saves time and panel space. The backplane connection provides power
and communication to the module and snaps easily onto standard top hat (T)
profile DIN rail.
SPECIFICATIONS
MODEL CSOUT
-
4-CCHHAANNNNEELLANNAALLOOGGOUUTTPPUUTTMOODDUULLEE
DIMENSIONS IN INCHES (MM)
C
C
US LISTED
US LISTED
UL
R
IND. CONT. EQ.
34AD
1. POWER: Derived from system backplane. (CSOUT draws 180 mA max. load
on power input of MASTER). Modules may be hot-swapped (replaced while
powered up).
2. LEDs:
STS - Status LED shows module condition.
ALM - Alarm LED is lit when an internal alarm condition exists.
3. MEMORY: Non-volatile memory retains all programmable parameters.
MASTER also stores the parameters in order to reprogram modules that
are replaced.
4. COMMUNICATIONS: Provided by the CS Master
5. OUTPUTS:
Channels: 4 independent outputs
Response Time: 25 msec max. to within 99% of final value
Output Range: software selectable
* The accuracy is specified after 20 minutes warmup; in a non-condensing
environment; and includes linearity errors.
6. ISOLATION LEVEL: The outputs are isolated from each other, and are
isolated from the power supply. 500 V @ 50/60 Hz for 1 minute between any
of the outputs and the CS Master power supply input.
7. ENVIRONMENTAL CONDITIONS:
Operating Temperature Range: 0 to +50°C
Storage Temperature Range: -40 to +85°C
Operating and Storage Humidity: 85% max relative humidity, non-
condensing, from 0 to +50°C
Vibration According to IEC 68-2-6: 10 to 150 Hz, 0.075 mm amplitude in
X, Y, Z direction 1 g.
Shock According to IEC 68-2-27: Operational 25 g, 11 msec in 3 directions.
Altitude: Up to 2000 meters
8. CERTIFICATIONS AND COMPLIANCES:
CE, UL Listed
9. CONSTRUCTION: Case body is burgundy high impact plastic. Installation
Category I, Pollution Degree 2.
10. CONNECTIONS: Removable wire clamp screw terminal blocks.
Wire Gage: 28-16 AWG terminal gage wire
Torque: 1.96-2.23 inch/lbs (0.22-0.25 N-m)
11. MOUNTING: Snaps on to standard DIN style top hat (T) profile mounting
rails according to EN50022 -35 x 7.5 and -35 x 15.
12. WEIGHT: 7 oz (198.4 g)
OUTPUT RANGE
ACCURACY *
18 to 28 °C
10 to 75% RH
ACCURACY *
0 to 50 °C
0 to 85% RH
COMPLIANCE RESOLUTION
0 to 5 VDC 0.2% of span 0.4% of span 10K Ωmin. 1/30,000
0 to 10 VDC 0.1% of span 0.2% of span 10K Ωmin. 1/60,000
-10 to +10 VDC 0.1% of span 0.2% of span 10K Ωmin. 1/60,000
0 to 20 mA 0.1% of span 0.2% of span 500 Ωmax. 1/60,000
4 to 20 mA 0.1% of span 0.2% of span 500 Ωmax. 1/48,000

58 www.redlion.net
ORDERING INFORMATION
BLOCK DIAGRAM
4-Channel Analog Output ModuleCSOUTAnalog Output Module CSOUT400
DESCRIPTIONMODEL NO.TYPE PART NUMBER

591-717-767-6511
ORDERING INFORMATION
DSP & MODULAR CONTROLLER
ACCESSORIES
CONFIGURED USING CRIMSON SOFTWARE
ISOLATED RS-232 AND RS-485 MULTIPLEXED
PORTS CAPABLE OF COMMUNICATING WITH
RS-232, RS-422, RS-485 AND DH485 DEVICES
AT UP TO 115,200 BAUD
EASY INSTALLATION
GENERAL DESCRIPTION
The XCRS option card adds an additional RS-232 and RS-422/485 port to the
series. This isolated card protects user equipment from potentially harmful
ground loops while providing high-speed RS-232, RS-422, RS-485, and DH485
communication options to the end user.
The XCRS communication card is easily installed by removing the blank
expansion port cover of your Modular Controller or Data Station Plus, and
plugging the XCRS card into the expansion port. Configuration is simple using
Red Lion's free Crimson 2.0 software.
SPECIFICATIONS
MODEL XCRS - ISOLATED SERIAL OPTION CARD
1. POWER REQUIREMENTS: Power is supplied to the option card from the
main board of the Modular Controller Master or Data Station Plus.
2. COMMUNICATIONS:
Serial Ports: Format and Baud Rates for each port are individually software
programmable up to 115,200 baud and are isolated to help prevent ground
loops. The RS-422/485 and DH485 port via RJ45 and the RS-232 port via
RJ12 share the same hardware.
DH485 TXEN: Transmit enable; open collector, VOH = 15 VDC, VOL = 0.5 VDC
Isolation from XCRS Communication ports to the Modular Controller
Master or Data Station Plus: 1000 VDC for 1 minute.
3. CERTIFICATIONS AND COMPLIANCES:
Refer to “Agency Approvals” section of Red Lion’s website for agency
certifications.
4. ENVIRONMENTAL CONDITIONS:
Operating Temperature Range: 0 to 50°C
Storage Temperature Range: -20 to 80°C
Operating and Storage Humidity: 80% maximum relative humidity (non-
condensing) from 0 to 50°C.
Altitude: Up to 2000 meters.
CONFIGURED USING CRIMSON SOFTWARE
DIGITALLY ISOLATED CANopen PORT
CAPABLE OF COMMUNICATING WITH ANY
CANopen DEVICE
EASY INSTALLATION
GENERAL DESCRIPTION
The XCCN option card adds a CANopen communication port to the series.
This isolated card protects user equipment from potentially harmful ground
loops while providing the ability to communicate to any high speed CANopen
device. The XCCN option card has a termination resistor built-in, which is
selectable via a jumper setting. Additionally, the XCCN connector is pluggable
for easy removal of the Modular Controller Master or Data Station Plus from the
CANopen bus without disturbing communications with other devices on the bus.
The XCCN communication card is easily installed by removing the blank
expansion port cover of your Modular Controller or Data Station Plus, and
plugging the XCCN card into the expansion port. Configuration is simple using
Red Lion's free Crimson 2.0 software.
SPECIFICATIONS
MODEL XCCN
-
CANOPEN/J1939
OPTION CARD
1. POWER REQUIREMENTS: Power is supplied to the option card from the
main board of the Modular Controller Master or Data Station Plus.
2. COMMUNICATIONS:
CANopen Port: The CANopen port has format and baud rates that are
software programmable up to 1M baud and are digitally isolated. This port
may be configured for various CANopen protocols. Check www.redlion.net
for currently supported protocols.
Isolation from XCCN Communication ports to the Modular Controller
Master or Data Station Plus:1000 VDC for 1 minute.
3. CERTIFICATIONS AND COMPLIANCES:
Refer to “Agency Approvals” section of Red Lion’s website for agency
certifications.
4. ENVIRONMENTAL CONDITIONS:
Operating Temperature Range: 0 to 50°C
Storage Temperature Range: -20 to 80°C
Operating and Storage Humidity: 80% maximum relative humidity (non-
condensing) from 0 to 50°C.
Altitude: Up to 2000 meters.
MODEL NO. DESCRIPTION PART NUMBER
XCRS XCRS0000
RS-232/485 option card for Modular Controller or
Data Station Plus
ORDERING INFORMATION
MODEL NO. DESCRIPTION PART NUMBER
XCCN XCCN0000
CANopen option card for Modular Controller or
Data Station Plus

60 www.redlion.net
ORDERING INFORMATION
CONFIGURED USING CRIMSON SOFTWARE
DIGITALLY ISOLATED DeviceNet PORT
CAPABLE OF COMMUNICATING WITH ANY
DeviceNet MASTER
EASY INSTALLATION
GENERAL DESCRIPTION
The XCDN option card adds a DeviceNet slave communication port to the
series. This isolated card protects user equipment from potentially harmful
ground loops while providing the ability to communicate to any high speed
DeviceNet master. Additionally, the XCDN connector is pluggable for easy
removal of the Modular Controller Master or Data Station Plus from the
DeviceNet bus without disturbing communications with other devices on the bus.
The XCDN communication card is easily installed by removing the blank
expansion port cover of your Modular Controller or Data Station Plus, and
plugging the XCDN card into the expansion port. Configuration is simple using
Red Lion's free Crimson 2.0 software.
SPECIFICATIONS
MODEL XCDN - DEVICENET OPTION CARD
1. POWER REQUIREMENTS: Power is supplied to the option card from the
main board of the Modular Controller Master or Data Station Plus.
2. COMMUNICATIONS:
DeviceNet Port: The DeviceNet port has format and baud rates that are
software programmable up to 500K baud and are digitally isolated. This port
may be configured for various DeviceNet protocols. Check www.redlion.net
for currently supported protocols.
Isolation from XCDN Communication ports Modular Controller Master
or Data Station Plus: 1000 VDC for 1 minute.
3. CERTIFICATIONS AND COMPLIANCES:
Refer to “Agency Approvals” section of Red Lion’s website for agency
certifications.
4. ENVIRONMENTAL CONDITIONS:
Operating Temperature Range: 0 to 50°C
Storage Temperature Range: -20 to 80°C
Operating and Storage Humidity: 80% maximum relative humidity (non-
condensing) from 0 to 50°C.
Altitude: Up to 2000 meters.
CONFIGURED USING CRIMSON SOFTWARE
ADDS PROFIBUS DP CONNECTIVITY TO
THE DATA STATION PLUS AND MODULAR
CONTROLLER SERIES
PROFIBUS DP SLAVE PROTOCOL
EASY INSTALLATION
GENERAL DESCRIPTION
The XCPB option card adds PROFIBUS DP connectivity to the series. This
allows a high-speed exchange of blocks of data, at data rates up to 12MBaud,
between the hosting Modular Controller or Data Station and a Master PLC or PC
on a PROFIBUS network. The DP suffix refers to “Decentralized Periphery”,
which is used to describe distributed I/O devices connected via a fast serial data
link with a central controller.
The XCPB communication card is easily installed by removing the blank
expansion port cover of your Modular Controller or Data Station Plus, and
plugging the XCPB card into the expansion port. Configuration is simple using
Red Lion’s free Crimson 2.0 software.
SPECIFICATIONS
MODEL XCPB - PROFIBUS OPTION CARD
1. POWER REQUIREMENTS: Power is supplied to the option card from the
main board of the Modular Controller Master or Data Station Plus.
2. COMMUNICATIONS:
PROFIBUS Port: FIELDBUS Type : PROFIBUS-DP EN 50 170, I. The
PROFIBUS port has autobaud detect up to 12M baud and is digitally
isolated.
3. CERTIFICATIONS AND COMPLIANCES:
Refer to “Agency Approvals” section of Red Lion’s website for agency
certifications.
4. ENVIRONMENTAL CONDITIONS:
Operating Temperature Range: 0 to 50°C
Storage Temperature Range: -20 to 80°C
Operating and Storage Humidity: 80% maximum relative humidity (non-
condensing) from 0 to 50°C.
Altitude: Up to 2000 meters.
MODEL NO. DESCRIPTION PART NUMBER
XCDN XCDN0000
DeviceNet option card for Modular Controller or
Data Station Plus
ORDERING INFORMATION
MODEL NO. DESCRIPTION PART NUMBER
XCCN XCCN0000
CANopen option card for Modular Controller or
Data Station Plus

611-717-767-6511
GENERAL DESCRIPTION
SPECIFICATIONS
MODEL XCGSM
-
CELLULAR MODEM OPTION CARD
ORDERING INFORMATION
CONFIGURED USING CRIMSON SOFTWARE
INSTALLS INSIDE A DATA STATION PLUS OR
MODULAR CONTROLLER
INSTALLATION AND CONNECTION
HARDWARE ARE INCLUDED WITH CARD
The XCGSM option card allows the user to add GSM/GPRS cellular modem
capability to their Data Station Plus or Modular Controller. GSM/GPRS is the
most prevalent cellular technology in today's markets. GPRS can be used for
services such as Wireless Application Protocol (WAP) access, Short Message
Service (SMS), and for Internet communication services such as email and
World Wide Web access. The XCGSM modem option card is quad-band,
allowing to to work in frequencies across Americas, Europe and Asia. US and
Canada work in the 850/1900 MHz bands, while Europe, Middle East, Africa
and most of Asia work in the 900/1800 MHz GSM/GPRS frequencies.
The XCGSM requires the addition of a SIM (Subscriber Identity Module)
card, which is inserted into the holder prior to installation of the XCGSM card.
The SIM card securely stores the service-subscriber key (IMSI) used to identify
a subscriber, and is used to connect to the network to obtain an IP address from
the provider.
The XCGSM communication card is easily installed by removing the blank
expansion port cover of your Modular Controller or Data Station Plus, and
plugging the XCGSM card into the expansion port. Configuration is simple
using Red Lion's free Crimson 2.0 software.
1. POWER REQUIREMENTS: Power is supplied to the option card from the
main board of the Modular Controller Master or Data Station Plus.
2. ANTENNA CONNECTOR:
SMA Female connector requires:
50 Ohm antenna with SMA male connector
Quad-band antenna (850/900/1800/1900 MHz) for global support.
Dual-band (850/1900 MHz) antenna for US and Canada only
Dual band (900/1800 MHz) for Europe only
The antenna cable should be 50Ωimpedance, RG178/U or RG174/U type
and be able to connect to the RSMA (Male) jack bulkhead. The antenna
could be horizontal, vertical or right angled. Longer antenna cable would
equate to signal loss.
3. CERTIFICATIONS AND COMPLIANCES:
Refer to “Agency Approvals” section of Red Lion’s website for agency
certifications.
4. ENVIRONMENTAL CONDITIONS:
Operating Temperature Range: 0 to 50°C
Storage Temperature Range: -20 to 80°C
Operating and Storage Humidity: 80% maximum relative humidity (non-
condensing) from 0 to 50°C.
Altitude: Up to 2000 meters.
MODEL NO. DESCRIPTION PART NUMBER
XCGSM XCGSM000
GSM/GPRS Modem Option Card for Modular
Controller or Data Station Plus

62 www.redlion.net
MESSAGE
DISPLAYS
TRI-COLOR DISPLAY PROVIDES INSTANT NOTICE OF
IMPORTANT INFORMATION
DISPLAYS INFORMATION FROM ANY G3 HMI, AND SX/GT
MODELS OF THE DATA STATION AND MODULAR CONTROLLER
GRAPHICAL DESIGN ALLOWS BARGRAPHS, CUSTOM SYMBOLS
AND GRAPHICS
FOUR SIZES FOR A WIDE RANGE OF APPLICATIONS
RS-485 PORT SUPPORTS MULTIDROP
AC POWERED (110 or 220 VAC, 50 / 60 HZ)
GENERAL DESCRIPTION
The PFM - Plant Floor Marquee series are multi-color LED displays
designed to provide vital process and production information to personnel at a
glance. The PFM must be used in tandem with Red Lion's G3 series of HMIs,
Data Station Plus or Modular Controller series. This affords the PFM the unique
ability to display information gathered by its host. The host devices can collect
information from virtually any device equipped with a serial or Ethernet port.
Four different sizes are available - The smallest is suitable to provide data at
the machine level, while the largest can be used to communicate information
across an entire factory floor at distances up to 600 feet (182 meters) away.
The PFM displays are controlled via the RS-485 port of a G3 HMI, or Data
Station Plus SX/GT models or Modular Controller Master modules. Acting as a
slave to these products allows the PFM to display data from multiple industrial
devices including PLCs, motor drives, barcode scanners, etc. The RS-485
connection allows the displays to be multi-dropped for applications requiring
more than one display.
The PFMs are graphic-based (versus text-based), which allows the series to
display items such as bargraphs and custom symbols and graphics. The 7.62
mm (0.3 inch) pitch LED design allows the use of a wide range of font styles
and sizes to suit any application. The display is housed in an extruded
aluminum and plastic housing designed for indoor use. Brackets are provided
to allow the PFM to be mounted from an overhead support.
SPECIFICATIONS
1. POWER:
PFM1608A: 105-115 VAC, 50/60 Hz @ 75 W max.
PFM2412A: 105-115 VAC, 50/60 Hz @ 155 W max.
PFM3212A: 105-115 VAC, 50/60 Hz @ 185 W max.
PFM6412A: 105-115 VAC, 50/60 Hz @ 267 W max.
PFM1608B: 210-230 VAC, 50/60 Hz @ 75 W max.
PFM2412B: 210-230 VAC, 50/60 Hz @ 155 W max.
PFM3212B: 210-230 VAC, 50/60 Hz @ 185 W max.
PFM6412B: 210-230 VAC, 50/60 Hz @ 267 W max.
2. DISPLAY: 7.62 mm (0.3 inch) pitch LED (red/amber/green)
Resolutions:
PFM1608x: 16H x 80W
PFM2412x: 24H x 120W
PFM3212x: 32H x 120W
PFM6412x: 64H x 120W
Maximum Viewing Distance:
PFM1608x: 150 ft (45.72 m)
PFM2412x: 200 ft (60.96 m)
PFM3212x: 450 ft (137.16 m)
PFM6412x: 600 ft (182.88 m)
3. COMMUNICATIONS: Connects to the host G3, Data Station or Modular
Controller (SX or GT models only) via RS-485.
4. ENVIRONMENTAL CONDITIONS:
Operating Temperature: 0 to 50°C.
Storage Temperature: -10 to 60°C.
Operating and Storage Humidity: 80% maximum relative humidity (non
condensing from 0 to 50°C.
5. CERTIFICATIONS AND COMPLIANCES:
Contact your Red Lion Controls distributor for more information.
6. CONNECTOR: IEC 320 C22 style; 5 ft. power cord included (US connector)
7. CONSTRUCTION: Extruded aluminum enclosure with ABS endcaps.
8. MOUNTING REQUIREMENTS: Suspend from overhead truss or other
suitable structure. See “Mounting Instructions” for more info. Refer to local
safety codes for additional requirements.
9. DIMENSIONS:
PFM1608x: 26" x 6.6" x 2.4" (660 x 168 x 61 mm)
PFM2412x: 38.5" x 8.8" x 3.4" (978 x 224 x 86 mm)
PFM3212x: 38.8" x 10.9" x 3.4" (986 x 277 x 86 mm)
PFM6412x: 39.3" x 22.6" x 3.4" (998 x 572 x 86 mm)
10. WEIGHT:
PFM1608x: 6.8 lbs. (3.1 Kg)
PFM2412x: 14.1 lbs. (6.4 Kg)
PFM3212x: 17.0 lbs. (7.7 Kg)
PFM6412x: 28.7 lbs. (13.0 Kg)
MODEL PFM - PLANT FLOOR MARQUEE
ORDERING INFORMATION
PFM6412A
PFM1608B
PFM3212BTricolor display 32x120, 220V
PFM2412BTricolor display 24x120, 220V
PFM3212ATricolor display 32x120, 110V
Tricolor display 64x120, 110V
PFM2412ATricolor display 24x120, 110V
Tricolor display 16x80, 220V
PFM6412BTricolor display 64x120, 220V
PFM
CBLPFM00Cable G3/DSP/MC TO PFMCBL
PFM1608ATricolor display 16x80, 110V
PART NUMBERDESCRIPTIONMODEL NO.

631-717-767-6511
NEMA 4 SEALED
LARGE 38.5" (977.9 mm) X 19" (482.6 mm) RED LED DISPLAY
WITH 0.2" DIAMETER PIXELS; 128 X 64 DOT RESOLUTION
DISPLAYS THE INFORMATION FROM ANY G3, DSP or
MODULAR CONTROLLER TO THE PLANT FLOOR
CONNECTS DIRECTLY TO THE RS-485 PORT OF A G3, DSP or
MODULAR CONTROLLERFS
FIELD REPLACEABLE DISPLAY BOARDS
REPLACEABLE FAN FILTER
FLEXIBLE 4 EYEBOLT MOUNTING
UNIVERSAL AC POWER (100 - 240 VAC, 50 / 60 HZ)
OPTIONAL NEMA 4 COOLING KIT AVAILABLE
GENERAL DESCRIPTION
The BFD is a large (38.5" x 19") LED display (128 x 64 pixel resolution)
which is driven from the RS-485 port of a G3. The BFD is built using 32 display
boards in an 8 column by 4 row configuration. When used with a G303, the
BFD will display the contents of the current G3 page. When used with larger
G3s, the desired information is selected by using a “display primitive” on the
current G3 page. Multiple BFDs can be driven from a single G3. The exact
number is dependent upon the lengths of the individual wiring runs. Contact
Red Lion Tech Support for more information.
The display is housed in a welded steel enclosure and the display window
(0.118" thick red acrylic) is sealed to the enclosure using a gasket and bezel
strips. The gasketed rear panel is bolted to the enclosure. The ventilation slots
and internal fan are designed to provide adequate cooling in a normal industrial
environment. The enclosure is designed to hang from an overhead support.
The BFD enclosure can be easily converted for indoor NEMA 4 operation
using the optional BFD NEMA 4 conversion kit. The kit includes a sealed cover
plate (to plug the vent hole), an external “cabinet cooler” (to replace the internal
fan) and a DIN-rail mounted power supply to operate the “cabinet cooler”.
Power to the BFD is provided by a universal AC input power supply. The AC
power and the G3 RS-485 cable enter the enclosure thru separate conduit
fittings. AC power connects to the power supply via a removable 3 position
terminal block. The RS-485 signal connects to the communication board via
either an RJ45 modular plug or a removable 2 position terminal block.
SPECIFICATIONS
MODEL BFD - BIG FLEXIBLE DISPLAY
BFD with NEMA 4 Option (G3BFDNEM)
BFD
DIMENSIONS IN INCHES (MM)
1. POWER: Universal AC input (100 - 240 VAC 50/60 Hz); 2.0 A @ 120 VAC;
1.0 A @ 240 VAC.
2. DISPLAY: 128 x 64 resolution using 0.2" (5.08 mm) diameter red LED
pixels. Overall display measures 38.5" (977.9 mm) x 19" (482.6 mm).
3. COMMUNICATIONS: Connects to the host G3 thru RS485 port via either
RJ45 or a removable 2 position terminal block; 115,200 baud, 8 bit, 1 stop bit,
no parity. The RS-232 ports (either the COMMs or PGM ports) may also be
used with the appropriate RS-232 to RS-485 converter. Note that the RS-232
and RS-485 ports provided by the Expansion card are not currently supported.
Isolation for communications: 2500 Vrms
Isolation for common: 1000 VDC for 60 seconds.
4. ENVIRONMENTAL CONDITIONS:
Operating Temperature : 0 - 50°C
Storage Temperature : -10 - 60°C
Operating and Storage Humidity: 80% maximum relative humidity (non-
condensing) from 0 to 50°C
Altitude: Up to 2000 meters
5. CERTIFICATIONS AND COMPLIANCES: See data sheet on web site for
detailed information.
6. WEIGHT: 117 lbs. (53.07 Kg)
ORDERING INFORMATION
CBLRLC04
10-foot RS485 cable for communications between
G3 and G3BFD
G3BFDNEMBig Flexible Display NEMA 4 Kit
CBL
G3BFDM00Big Flexible Display
BFD
PART NUMBERDESCRIPTIONMODEL NO.

64 www.redlion.net
PROCESS CONTROLLERS
MODULAR BUILDING BLOCK FOR MULTI-ZONE PROCESS
CONTROL
TWO INDEPENDENT PID CONTROL LOOPS
PID CONTROL WITH REDUCED OVERSHOOT
UNIVERSAL INPUTS ACCEPT TC, RTD, 0-10 V and 0/4-20 mA
SIGNALS
TWO DC ANALOG OUTPUTS (OPTIONAL)
WINDOWS®CONFIGURATION SOFTWARE
RS485 MODBUS™ PROTOCOL
CHANNEL B CAN BE ASSIGNED AS A SECOND ANALOG INPUT
TO CHANNEL A FOR REMOTE SETPOINT OPERATION
SETPOINT CONTROLLER OPTION FOR TIME VS.
TEMP./PROCESS (RAMP/SOAK) AND SPECIAL BATCH/RECIPE
APPLICATIONS
SQUARE ROOT EXTRACTION FOR FLOW SENSOR
APPLICATIONS
GENERAL DESCRIPTION
The Model DLC, Dual Loop Controller, is a full featured, DIN rail mounted,
dual input PID controller. The DLC is designed as a modular building block for
multi-zone process control applications. The controller has two independent
“A” & “B” input channels. Each channel’s input can be configured to accept a
wide range of thermocouple, RTD, 0-10 V, 0/4-20 mA, or resistive signals. Each
channel can also be configured to extract the square root of the input in both
process voltage or process current modes for applications such as flow
measurement using a differential flow sensor.
Channel B can be assigned as a Remote Setpoint for Channel A. The two time-
proportioning or DC Analog outputs can be programmed to control two
independent processes. The two alarms per channel can be configured for various
alarm modes, or provide a secondary control output for heat/cool applications.
The control and alarm outputs are N channel open drain MOSFETs capable
of switching up to 1 Amp DC. For applications requiring larger loads or A/C
loads, several DIN rail mount relays are available.
The controller operates in the PID Control Mode for both heating and
cooling, with on-demand auto-tune, that establishes the tuning constants. The
PID tuning constants may be fine-tuned through the serial interface. The
controller employs a unique overshoot suppression feature, which allows the
quickest response without excessive overshoot. The controller can be
transferred to operate in the Manual Mode, providing the operator with direct
control of the output, or the On/Off Control Mode with adjustable hysteresis.
The controller’s high density packaging and DIN rail mounting saves time
and panel space. The controller snaps easily onto standard top hat (T) profile
DIN rails.
ALARMS
The DLC’s two solid-state alarms can be configured independently for
absolute high or low acting with balanced or unbalanced hysteresis. They can
also be configured for deviation and band alarm. In these modes, the alarm
trigger values track the setpoint value. Adjustable alarm trip delays can be used
for delaying output response. The alarms can be programmed for Automatic or
Latching operation. Latched alarms must be reset with a serial command. A
standby feature suppresses the alarm during power-up until the temperature
stabilizes outside the alarm region. The outputs can also be manually controlled
with Modbus register or coil commands.
SETPOINT CONTROLLER OPTION
The Setpoint Controller option is suitable for time vs. temperature/process
control applications. The controller allows a profile of up to 20 ramp/soak
segments. Profile conformity is assured by using the Error Band Mode and
Error Band parameter. The Profile Cycle Count allows the profile to run
continuously or a fixed number of cycles. Power-on options automatically stop,
abort, start, resume, or pause a running profile.
MODEL DLC
-
DUAL LOOP CONTROLLERS
DIMENSIONS IN INCHES (MM)
UL Recognized Component,
File #E156876
COMMUNICATIONS
The RS-485 serial communications allows the DLC to be multi-dropped,
with Baud rates up to 38400. The CBPRO007 programming cable converts the
RS-232 port of a PC to RS-485 and is terminated with an RJ11 connector. The
bi-directional capability of the CBPRO007 allows it to be used as a permanent
interface cable as well as a programming cable.
ANALOG OUTPUT OPTION
The optional dual DC Analog Output (10 V or 20 mA) can be independently
configured and scaled for control or re-transmission purposes. These outputs can
be assigned to separate channels, or both outputs can be assigned to the same
channel. Programmable output update time reduces valve or actuator activity.

651-717-767-6511
SPECIFICATIONS
1. POWER:
18 to 36 VDC, 13 W
(4 W if +24 VDC Output excitation is unused)
24 VAC, ±10% 50/60 Hz, 15 VA
(7 VA if +24 VDC Output excitation is unused)
Must use a Class 2 or SELV rated power supply.
2. +24 VDC OUTPUT POWER: 24 VDC, +15%, -5%, 200 mA max
3. MEMORY: Non-volatile memory retains all programmable parameters.
4. INPUT:
Sample Time: 100 msec (9.5 Hz)
Failed Sensor Response: Open or shorted (RTD only) sensor coils
indication, error code returned in Process Value
Common Mode Rejection: >110 dB, 50/60 Hz
Normal Mode Rejection: >40 dB, 50/60 Hz
Temperature Coefficient: 0.013%/°C
Overvoltage: 50 VDC max
Step Response Time: 300 msec typ., 400 msec max
5. THERMOCOUPLE INPUTS:
Types: T, E, J, K, R, S, B, N, C, linear mV
Input Impedance: 20 MΩ
Lead Resistance Effect: 0.25 μV/Ω
Cold Junction Compensation: Less than ±1°C typical (±1.5°C max) over
0 to 50°C ambient temperature range or less than ±1.5°C typical (2°C max)
over -20 to 65°C maximum ambient temperature range.
Resolution: 1° or 0.1° for all types except linear mV (0.1 or 0.01 mV)
6. RTD INPUTS:
Type: 2 or 3 wire
Excitation: 150 μA
Lead Resistance: 15 Ωmax
Resolution: 1 or 0.1° for all types
7. PROCESS INPUT:
* Accuracies are expressed as ±percentages after 20 minute warm-up.
8. ISOLATION LEVEL: 500 V @ 50/60 Hz, for one minute (50 V working)
between the following groups:
Ch A Input Ch B Input
Control and Alarm Outputs RS485/Analog Output 1
Power Supply
Note: RS485 and Analog Outputs are not internally isolated. Their commons
must not be connected together externally for proper unit function (i.e.,
earth ground).
9. SERIAL COMMUNICATIONS:
Type: RS485; RTU and ASCII MODBUS modes
Baud: 300, 600, 1200, 2400, 4800, 9600, 19200, and 38400
Format: 7/8 bits, odd, even, and no parity
Transmit Delay: Programmable: See Transmit Delay explanation.
Transmit Enable (TXEN): (primarily for 20 mA loop converter) open
collector VOH = 10 VDC max, VOL = 0.5 VDC @ 5 mA max current limit
10. A/D CONVERTER: 16 bit resolution
11. CONTROL AND ALARM OUTPUTS:
Type: Non-isolated switched DC, N Channel open drain MOSFET
Current Rating: 1 A max
VDS ON: 0.3 V @ 1 A
VDS MAX: 30 VDC
Offstate Leakage Current: 0.5 mA max
12. MAIN CONTROL:
Control: PID or On/Off
Output: Time proportioning or DC Analog
Cycle Time: Programmable
Auto-Tune: When selected, sets proportional band, integral time, derivative
time values, and output dampening time
Probe Break Action: Programmable
13. ALARM: 1 or 2 alarms
Modes:
Manual (through register/coil)
Absolute High Acting Absolute Low Acting
Deviation High Acting Deviation Low Acting
Inside Band Acting Outside Band Acting
Reset Action: Programmable; automatic or latched
Standby Mode: Programmable; enable or disable
Hysteresis: Programmable
Sensor Fail Response: Upscale
14. COOLING: Software selectable (overrides Alarm 2).
Control: PID or On/Off
Output: Time proportioning or DC Analog
Cycle Time: Programmable
Proportional Gain Adjust: Programmable
Heat/Cool Deadband Overlap: Programmable
15. ANALOG DC OUTPUTS: (optional)
Control or retransmission, programmable update rate from 0.1 sec or
1 to 250 sec
Step Response Time: 100 msec
16. ENVIRONMENTAL CONDITIONS:
Operating Temperature Range: -20 to +65°C
Storage Temperature Range: -40 to +85°C
Operating and Storage Humidity: 85% max relative humidity,
noncondensing, from -20 to +65°C
Vibration according to IEC 68-2-6: Operational 5 to 150 Hz, in X, Y, Z
direction, duration: 1.5 hours, 2 g’s.
Shock according to IEC 68-2-27: Operational 30 g’s, 11 msec in 3 directions.
Altitude: Up to 2000 meters
17. CERTIFICATIONS AND COMPLIANCES: See data sheet on web site
for detailed information.
18. WEIGHT: 10.5 oz. (298 g.)
N/AN/A-5 mV to 56 mVmV
No StandardNo Standard
0 to +2315°C
+32 to +4199°F
C
W5/W6
(+) Orange
(-) Blue
(+) Orange
(-) Red
-200 to +1300°C
-328 to +2372°F
N
No StandardNo Standard
+149 to +1820°C
+300 to +3308°F
B
(+) White
(-) Blue
No Standard
0 to +1768°C
+32 to +3214°F
S
(+) White
(-) Blue
No Standard
0 to +1768°C
+32 to +3214°F
R
(+) Brown
(-) Blue
(+) Yellow
(-) Red
-200 to +1250°C
-328 to +2282°F
K
(+) Yellow
(-) Blue
(+) White
(-) Red
-200 to +760°C
-328 to +1400°F
J
(+) Brown
(-) Blue
(+) Violet
(-) Red
-200 to +750°C
-328 to +1382°F
E
(+) White
(-) Blue
(+) Blue
(-) Red
-200 to +400°C
-328 to +752°F
T
BS 1843ANSI
WIRE COLOR
MEASUREMENT
RANGE
TYPE
-80 to +215°C
-112 to +419°F
120 Ωnickel, Alpha = .00672
672
0 to 320 Ω
Linear Resistanceohms
-200 to +600°C
-328 to +1100°F
100 Ωplatinum, Alpha = .003919
392
-200 to +600°C
-328 to +1100°F
100 Ωplatinum, Alpha = .00385
385
RANGEINPUT TYPETYPE
1 µA100 mA
10 Ω
0.10% of reading
+0.03 mA
20 mA DC
(-2 to 22)
1 mV50 V
1 MΩ
0.10% of reading
+0.02 V
10 VDC
(-1 to 11)
RESOLUTION
MAX
CONTINUOUS
OVERLOAD
IMPEDANCE
ACCURACY *
(18 to 28°C)
(10 to 75% RH)
INPUT RANGE
500 Ωmax
500 Ωmax
10 KΩmin
0.10% of FS + 1/2 LSD
0.10% of FS + 1/2 LSD
0.10% of FS + 1/2 LSD
4 to 20 mA
0 to 20 mA
0 to 10 V
OUTPUT
RANGE**
ACCURACY *
(18 to 28°C)
(10 to 75% RH)
COMPLIANCE RESOLUTION
(TYPICAL)
1/18000
1/18000
1/14400

66 www.redlion.net
ORDERING INFORMATION
MODEL NO. DESCRIPTION PART NUMBERS
Dual Loop Controller DLC00001
P89
Dual Loop Controller w/ 2 Analog Outputs DLC01001
SF PC Configuration Software for Windows SFDLC
CBPRO Programming Interface Cable CBPRO007
CBJ Cable RJ11 to RJ11 (6 inch jumper) CBJ11BD5
DRR RJ11 to Terminal Adapter DRRJ11T6
Dual Setpoint Controller w/ 2 Analog Outputs
Paradigm to RJ11 Cable P893805Z
DLC11001
Dual Loop Cont. w/ 2 Analog Outputs w/ DH-485 DLCD1001
Dual Loop Cont., w/ COMBICON screw flange conn. DLCN0011
Dual Loop Setpoint Cont., w/ 2 analog outputs, COMBICON screw flange connector DLCN1111
DLCD
DLCN Dual Loop Cont., w/ 2 analog outputs, COMBICON screw flange connector DLCN1011
Dual Loop Controller w/ DH-485 DLCD0001
Dual Loop Cont., w/ 5 Pin Male M12 connector DLCN0001
Dual Loop Cont., w/ 2 analog outputs, 5 Pin Male M12 connector DLCN1001
Dual Loop Setpoint Cont., w/ 2 analog outputs, 5 Pin Male M12 connector DLCN1101
See our RSRLYB, RLY6, and RLY7 literature for details on DIN rail mountable relays.

671-717-767-6511
ETHERNET
SWITCH
GENERAL DESCRIPTION
MODEL SWITCH08
-
8
PORT
DIMENSIONS IN INCHES (MM)
OUNMANAGED SWITCH REQUIRES NO CONFIGURATION
OSUPPORTS 10/100 MDPS NETWORK
OAUTO HALF/FULL DUPLEX NEGOTIATION
OAUTO-CROSSING DETECTION SUPPORTS STANDARD AND
CROSSOVER ETHERNET CABLES
The SWITCH08 is an eight-port Ethernet switch designed to simplify
network expansion, while improving the network’s efficiency. Eight 10/100
Base-T ports, with auto negotiation of half or full duplex connections requires
no setup, reducing installation time. The SWITCH08 also offers an
auto-crossing feature, which allows connections to be made with any
combination of standard or crossover Ethernet cables.
The SWITCH08 may be powered with two DC sources, allowing for
redundancy in critical applications. A relay output provides a warning signal if
the backup supply fails, ensuring continued operation when needed.
SPECIFICATIONS
1. POWER: 24 VDC ±20 %, 4.8 W
2. RELAY OUTPUT: Single N.C. 24 VDC @ 100 mA max.
3. LEDs:
V1+ and V2+ - On when proper voltage is present at respective terminal
Link/Act - On indicates link established; blinking indicates network activity
on the port.
100 - On indicates 100 Mbps connection established; off indicates 10 Mbps
connection.
4. ENVIRONMENTAL CONDITIONS:
Operating Temperature Range: 0 to +55°C
Storage Temperature Range: -20 to +70°C
Operating and Storage Humidity: 30-95%, non-condensing
Altitude: Up to 1500 meters
8. CERTIFICATIONS AND COMPLIANCES:
9. WEIGHT: 0.61 lbs. (0.27 Kg)
UL Recognized Component,
File # E244362
ORDERING INFORMATION
SWITCH088-Port Ethernet SwitchSWITCH
PART NUMBERDESCRIPTIONMODEL NO.

68 www.redlion.net
This page intentionally left blank.

691-717-767-6511
TOTALIZING
COUNTERS
A
The Trusted Source for
Innovative Control
Solutions

A
70 www.redlion.net
QUICK Specs
8 Digit, .35" (9mm)
Reflective, Green and
Red Backlight LCD
8 Digit, .35" (9mm)
Reflective, Green and
Red Backlight LCD
6 Digit, .46" (12mm),
8 Digit, .46" (12mm)
Reflective, Green and
Red Backlight LCD
6 Digit, .56" (14mm)
8 Digit, .4" (10mm)
Red LED
Display
1/32 DIN
Miniature Counter
1/32 DIN
Miniature Counter Counter 1/8 DIN Counter
Uni-Directional Uni-Directional Uni-Directional
Uni-Directional
Up/Down
Inhibit
Store
10,000 Counts/Sec. 10,000 Counts/Sec. 5000 Counts/Sec. 25,000 Counts/Sec
NoYesNoYes
Front Panel, Remote Front Panel, Remote Front Panel, Remote Front Panel, Remote
No No
No
Yes, with Micro Line
Power Supply
9 to 17.5 VDC @ 100 mA
No No No No
No No No No
3 Volt Lithium Battery,
Backlighting
9 - 28 VDC @ 35 mA
3 Volt Lithium Battery,
Backlighting
9 - 28 VDC @ 35 mA
3 Volt Lithium Battery,
Backlighting
9 - 28 VDC @ 35 mA
115/230 VAC
10 to 16 VDC
28 mm (H) x 51mm (W) 28 mm (H) x 51mm (W) 39 mm (H) x 75mm (W) 50 mm (H) x 97mm (W)
Max. Input
Frequency
Input Scaling &
Decimal Points
Reset
Capability
Page 73 Page 85 Page 98 Page 118
Page Number
Sensor Power
Setpoint
Capability
Power Source
Dimensions
(Height)x (Width)
Communications
Counting
Capability
Description
CUB7 CUB7P CUB4 PAXLC
COUNTERS
Totalizers

CUB5 PAXLCR PAXC PAXI
A
711-717-767-6511
QUICK Specs
COUNTERS W/CONTROL
Totalizing Counters
8 Digit, .35" (9mm)
Reflective, Green and
Red Backlight LCD
6 Digit, .56" (14mm)
Red LED
6 Digit, .56" (14mm)
Standard Green or Sunlight
Readable Red LED,
Adjustable Intensity
6 Digit, .56" (14mm)
Standard Green or Sunlight
Readable Red LED,
Adjustable Intensity
Display
Counter/Rate Meter With
Output Option Card Capability
1/8 DIN Counter/Rate Meter
With Setpoint Capability 1/8 DIN Counter
With Setpoint Card Capability
1/8 DIN Counter/Rate Meter
With Output Option Card
Capability
Uni-Directional
Up/Down
Inhibit
Add/Subtract
Add/Add
Quadrature
Batch
Uni-Directional
Up/Down
Inhibit
Add/Subtract
Add/Add
Quadrature
Batch
Uni-Directional
Up/Down
Inhibit
Add/Subtract
Add/Add
Quadrature
Batch
Uni-Directional
Up/Down
Inhibit
Add/Subtract
Add/Add
Quadrature
Batch
20,000 Counts/Sec.
Program Dependent.
20,000 Counts/Sec.
Program Dependent
34,000 Counts/Sec.
Program Dependent
34,000 Counts/Sec.
Program Dependent
Yes Yes Yes Yes
Front Panel, Remote Front Panel, Remote Front Panel, Remote Front Panel, Remote
No
Yes, with Micro Line
Power Supply
24 VDC @ 100 mA, over 50 V
24 VDC @ 50 mA, under 50 V 12 VDC @ 100 mA 12 VDC @ 100 mA
Single Form C Relay
Dual Sinking Dual Form C Relays
Dual Form C
Quad Form A
Quad Sinking
Quad Sourcing
Dual Form C
Quad Form A
Quad Sinking
Quad Sourcing
RS485 No No
RS232 or RS485
Modbus
DeviceNet
Profibus
Ethernet w/ICM8
10 to 28 VDC 50 to 250 VAC
21.6 to 250 VDC
85 to 250 VAC
11 to 36 VDC
24 VAC
85 to 250 VAC
11 to 36 VDC
24 VAC
39 mm (H) x 75mm (W) 50 mm (H) x 97mm (W) 50 mm (H) x 97mm (W) 50 mm (H) x 97mm (W)
Max. Input
Frequency
Input Scaling &
Decimal Points
Reset
Capability
Page 102 Page 125 Page 137 Page 169
Page Number
Sensor Power
Setpoint
Capability
Power Source
Dimensions
(Height)x (Width)
Communications
Counting
Capability
Description

A
72 www.redlion.net
CUBID/CUBVD
LPPI
APLIT/APLHV
APLCL/APLPV
CUBID/CUBVD
LPPI
APLIT/APLHV
APLCL/APLPV
WHAT YOU’RE USING NOW CURRENT PRODUCT
CUB7
CUB1
QDisplay: .35" (9 mm) Reflective LCD
QPower Source: Internal Battery
QCount Speed: 10 KHz Max.
QDisplay: .2" (5 mm) Reflective LCD
QPower Source: 2 “N” Alkaline Batteries
QCount Speed: 5 KHz Max.
CUB4 / CUB4L8CUB2
QDisplay: .48" (12 mm) Reflective LCD
QPower Source: Internal Battery
QCount Speed: 10 KHz Max.
QDisplay: .35" (9 mm) Reflective LCD
QPower Source: Battery Powered
QCount Speed: 5 KHz Max.
MODEL NUMBER FEATURES MODEL NUMBER FEATURES
CUB7CUB3
QDisplay: .35" (9 mm) Reflective LCD
QPower Source: Internal Battery
QCount Speed: 10 KHz Max.
Panel Cut-Out Dimension Differences
QDisplay: .2" (5 mm) Reflective LCD
QPower Source: 2 “N” Alkaline
Batteries
QCount Speed: 100 Hz Max.
PAXLCAPLT
QDisplay: 6 Digit, .56" (14 mm) Red
LED, 8 Digit, .4” (10 mm) Red LED
QPower Source: 115/230 VAC,
10 to 16 VDC
QCount Speed: 25 KHz Max.
QDisplay: 6 Digit, .56" (14 mm) Red
LED, 8 Digit, .36” (9 mm) Red LED
QPower Source: 115/230 VAC,
11 to 14 VDC
QCount Speed: 10 KHz Max.
PAXLCSCT
QDisplay: 6 Digit, .56" (14 mm)
Red LED
QPower Source: 115/230 VAC,
10 to 16 VDC
QCount Speed: 25 KHz Max.
QDisplay: 6 Digit, .43" (11 mm)
Red LED
QPower Source: 115/230 VAC, 12 VDC
QCount Speed: 10 KHz Max.
REPLACEMENT Guide
Note: Refer to the current product literature, as some differences may exist.

A
73
1-717-767-6511
zLCD, REFLECTIVE OR TRANSMISSIVE WITH YELLOW/GREEN
OR RED LED BACKLIGHTING (9-28 VDC power supply required for
versions with LED backlighting)
z0.35" (8.90 mm) HIGH DIGITS
zREPLACEABLE INTERNAL LITHIUM BATTERY PROVIDES UP TO
7 YEARS OF UNINTERRUPTED OPERATION (Battery included)
zNEMA 4X/IP65 SEALED FRONT BEZEL
zCOUNT SPEEDS UP TO 10 KHz (CUB7)
zWIRE CONNECTION MADE VIA SCREW CLAMP TYPE
TERMINALS
zFITS DIN STANDARD CUT-OUT 1.77" (45 mm) x 0.874"
(22.2 mm)
DESCRIPTION
The CUB7 series is an 8-digit miniature counter with large 0.35 inch (8.90
mm) high digits. It has an LCD read-out available in Positive Image Reflective,
Negative Image Transmissive with yellow/green backlighting or red
backlighting. The backlight versions require an external 9 to 28 VDC power
supply.
The CUB7 series use a CMOS LSI counter circuit chip, mounted on a gold-
plated substrate, that is electrically connected by ultrasonic wire-bonding.
Proven micro-electronic assembly and manufacturing techniques provide these
units with the reliability and dependability required for industrial service.
The CUB7 series is housed in a lightweight, high impact plastic case with a
clear viewing window. The sealed front panel with the silicone rubber reset
button meets NEMA 4X/IP65 specifications for wash-down and/or dusty
environments, when properly installed.
SAFETY SUMMARY
All safety related regulations, local codes and instructions that appear in the
manual or on equipment must be observed to ensure personal safety and to
prevent damage to either the instrument or equipment connected to it. If
equipment is used in a manner not specified by the manufacturer, the protection
provided by the equipment may be impaired.
Do not use this unit to directly command motors, valves, or other actuators
not equipped with safeguards. To do so, can be potentially harmful to persons
or equipment in the event of a fault to the unit.
SPECIFICATIONS
1. DISPLAY: 8-digit LCD, 0.35" (8.90 mm) high digits.
2. POWER SOURCE: Replaceable Internal 3.0 V lithium battery to provide up
to 7 years of continuous operation. (Battery life is dependent upon usage.
Count and reset contacts that remain closed for long periods of time reduce
battery life.)
3. BACKLIGHT POWER REQUIREMENTS: 9 to 28 VDC; 35 mA. typical,
50 mA max. Above 26 VDC, derate max. operating temperature to 40°C.
Must use a Class 2 or SELV rated power supply.
4. INPUTS: VIL (low) = 0.5 V max
Low speed input: 30 Hz from switch contact or open collector transistor
with 50% duty cycle
High speed input: VIH (high) = 2.0 V min. (3 V max). 10KHz max from
3.0 V bipolar output with a 50% duty cycle
5. REMOTE RESET: 15 msec min. pulse width (active low) from 3.0 V
bipolar output, an open collector transistor, or a switch contact to common.
MODEL CUB7 - MINIATURE ELECTRONIC 8 DIGIT COUNTER
DIMENSIONS In inches (mm) Note: Recommended minimum clearance (behind the panel) for mounting
clip installation is 2.15" (54.6) H x 3.00" (76.2) W.
PANEL CUT-OUT
CAUTION: Risk of Danger.
Read complete instructions prior to
installation and operation of the unit.
C
C
US LISTED
US LISTED
UL
R
IND. CONT. EQ.
51EB
ORDERING INFORMATION
*Battery is included with unit.
MODEL NO. DESCRIPTION PART NUMBERS
CUB7 *
Counter Positive Image Reflective CUB70000
Counter W/Yel-Grn Backlighting CUB70010
Counter W/Red Backlighting CUB70020
BNL 3 V Lithium Battery BNL10000
For more information on Pricing, Enclosures & Panel Mount Kits refer to the
RLC Catalog or contact your local RLC distributor.

A
74 www.redlion.net
Pulling the “L.S. CNT.” Input to Common with a mechanical or solid-state
switch increments the counter. The low pass filter (2.2 MΩresistor and 0.0068
μf capacitor) used with a Schmidt trigger circuit debounces mechanical switch
signals. The switch load is 6 μA (max. voltage drop 0.5 V) when ON. The
OFF-state leakage current must be less than 2 μA.
Motor starter contacts, tungsten contacts, and brush-type contacts should
not be used.
The “H.S. CNT.” Input allows the CUB7 to operate at speeds up to 10 KHz
when driven by bi-polar outputs or external circuits having an output
impedance of 3.3 KΩor less. Input drive voltage must be limited to 3 V
maximum to avoid damage to the counter. CMOS and TTL Logic outputs can
be loaded with a resistor (RL) to limit drive voltage, or a voltage divider can
be used as shown for the PNP O.C. Transistor output.
CUB7 HIGH SPEED COUNT INPUT, 10 KHz MAX.
R values for
Fig 2 & 3
+V R
+5 V 2.2 K
+12 V 10 K
+18 V 16 K
+24 V 24 K
TTL OR CMOS PNP O.C. TRANSISTOR NPN O.C.
OUTPUT OR BI-POLAR OUTPUT TRANSISTOR
FIG 1 FIG 2 FIG 3
6. CERTIFICATIONS AND COMPLIANCES:
SAFETY
IEC 61010-1, EN 61010-1: Safety requirements for electrical equipment
for measurement, control, and laboratory use, Part 1.
IP65 Enclosure rating (Face only), IEC 529
UL Listed, File # E137808, UL508, CSA C22.2 No. 14-M95
LISTED by Und. Lab. Inc. to U.S. and Canadian safety standards
Type 4X Indoor Enclosure rating (Face only), UL50
ELECTROMAGNETIC COMPATIBILITY
Notes:
1. Burst to DC backlight power had a power line filter installed RLC
#LFIL0000 or equivalent at the unit.
2. Self-recoverable loss of performance during EMI disturbance at 10 V/rms
to backlight power lines.
LCD segments may flicker during EMI disturbance.
For operation without loss of performance:
Install power line filter RLC #LFIL0000 or equivalent at the unit.
Refer to the EMC Installation Guidelines section of this bulletin for
additional information.
7. ENVIRONMENTAL CONDITIONS:
Operating Temperature Range: 0 to 50°C Derate max. operating
temperature to 40°C above 26 VDC. (Backlight versions)
Storage Temperature Range: -30 to 80°C
Operating and Storage Humidity: 85% max. (non-condensing) from 0°C to
50°C.
Vibration According to IEC 68-2-6: Operational 5 to 500 Hz, in X, Y, Z
direction for 1.5 hours, 5 g’s.
Shock According to IEC 68-2-27: Operational 30 g, 11 msec in 3 directions.
Altitude: Up to 2000 meters
8. CONNECTIONS: Wire clamping screw terminals
Wire Strip Length: 0.3" (7.5 mm)
Wire Gage: 30-14 AWG copper wire
Torque: 5 inch-lbs (0.565 N-m) max
9. CONSTRUCTION: High impact plastic case with clear viewing window.
The front panel meets NEMA 4X/IP65 requirements for indoor use when
properly installed. Installation Category I, Pollution Degree 2. Panel gasket
and mounting clip included.
10. WEIGHT: 2 oz. (57 grams) [with battery]
EN 61000-4-2
Enclosure class B
Power mains class B
EN 55022RF interference
Emissions to EN 50081-1
150 KHz - 80 MHz
Level 3; 10 V/rms 2
EN 61000-4-6RF conducted interference
Level 3; 2 Kv power
Level 4; 2 Kv I/O 1
EN 61000-4-4Fast transients (burst)
80 MHz - 1 GHz
Level 3; 10 V/m EN 61000-4-3Electromagnetic RF fields
Level 3; 8 Kv air
Level 2; 4 Kv contact Electrostatic discharge
Level 4; 30 A/m
Level 3; 10 V/m
EN 61000-4-8
ENV 50204
Power frequency magnetic fields
Simulation of cordless telephone
200 Hz, 50% duty cycle
Immunity to EN 50082-2
900 MHz ±5 MHz
CUB7 LOW SPEED COUNT INPUT, 30 Hz MAX.

A
75
1-717-767-6511
EMC INSTALLATION GUIDELINES
Although this unit is designed with a high degree of immunity to
ElectroMagnetic Interference (EMI), proper installation and wiring methods
must be followed to ensure compatibility in each application. The type of the
electrical noise, source or coupling method into the unit may be different for
various installations. In extremely high EMI environments, additional measures
may be needed. The unit becomes more immune to EMI with fewer I/O
connections. Cable length, routing and shield termination are very important
and can mean the difference between a successful installation or a troublesome
installation. Listed below are some EMC guidelines for successful installation
in an industrial environment.
1. Use shielded (screened) cables for all Signal and Control inputs. The shield
(screen) pigtail connection should be made as short as possible. The
connection point for the shield depends somewhat upon the application.
Listed below are the recommended methods of connecting the shield, in order
of their effectiveness.
a. Connect the shield only at the panel where the unit is mounted to earth
ground (protective earth).
b. Connect the shield to earth ground at both ends of the cable, usually when
the noise source frequency is above 1 MHz.
c. Connect the shield to common of the unit and leave the other end of the
shield unconnected and insulated from earth ground.
2. Never run Signal or Control cables in the same conduit or raceway with AC
power lines, conductors feeding motors, solenoids, SCR controls, and
heaters, etc. The cables should be run in metal conduit that is properly
grounded. This is especially useful in applications where cable runs are long
and portable two-way radios are used in close proximity or if the installation
is near a commercial radio transmitter.
3. Signal or Control cables within an enclosure should be routed as far away as
possible from contactors, control relays, transformers, and other noisy
components.
4. In extremely high EMI environments, the use of external EMI suppression
devices, such as ferrite suppression cores, is effective. Install them on Signal
and Control cables as close to the unit as possible. Loop the cable through the
core several times or use multiple cores on each cable for additional protection.
Install line filters on the power input cable to the unit to suppress power line
interference. Install them near the power entry point of the enclosure. The
following EMI suppression devices (or equivalent) are recommended:
Ferrite Suppression Cores for signal and control cables:
Fair-Rite # 0443167251 (RLC #FCOR0000)
TDK # ZCAT3035-1330A
Steward #28B2029-0A0
Line Filters for input power cables:
Schaffner # FN610-1/07 (RLC #LFIL0000)
Schaffner # FN670-1.8/07
Corcom #1VR3
Note: Reference manufacturer’s instructions when installing a line filter.
5. Long cable runs are more susceptible to EMI pickup than short cable runs.
Therefore, keep cable runs as short as possible.
WIRING CONNECTIONS
The electrical connections are made via screw-clamp terminals located on the
back of the unit. All conductors should meet voltage and current ratings for each
terminal. Also cabling should conform to appropriate standards of good
installation, local codes and regulations. It is recommended that power supplied
to the unit (AC or DC) be protected by a fuse or circuit breaker. When wiring
the unit, use the battery cover to identify the wire position with the proper
function. Strip the wire, leaving approximately 1/4" bare wire exposed (stranded
wires should be tinned with solder). Insert the wire under the screw-clamp and
tighten down the screw until the wire is clamped in tightly. Each terminal can
accept up to two #14 AWG wires.
WARNING: Lithium battery may explode if incinerated. All leads
will be at the same line potential as the input leads.
INSTALLATION ENVIRONMENT
The unit should be installed in a location that does not exceed the maximum
operating temperature and provides good air circulation. Placing the unit near
devices that generate excessive heat should be avoided.
The bezel should be cleaned only with a soft cloth and neutral soap product.
Do NOT use solvents.
Continuous exposure to direct sunlight may accelerate the aging process of
the bezel. Do not use tools of any kind (screwdrivers, pens, pencils, etc.) to
operate the keypad of the unit.
Installation
The CUB7 series of products meets NEMA 4X/IP65 requirements for
indoor use, when properly installed. The units are intended to be mounted into
an enclosed panel. The viewing window and reset button are factory sealed for
a washdown environment. A sponge rubber gasket and mounting clip are
provided for installing the unit in the panel cut-out.
The following procedure assures proper installation:
1. Cut panel opening to specified dimensions. Remove burrs and clean around
panel opening.
2. Carefully remove and discard the center section of the gasket. Slide the
panel gasket over the rear of the unit to the back of the bezel. Insert the
mounting screws onto both sides of mounting clip. Tip of screw should
NOT project from hole in mounting clip.
3. Install CUB7 unit through the panel cut-out until front bezel flange contacts
the panel.
4. Slide the mounting clip over the rear of the unit until the clip is against the
back of the panel. The mounting clip has latching features which engage
into mating features on the CUB7 housing.
Note: It is necessary to hold the unit in place when sliding mounting clip
into position.
5. Alternately tighten each screw to ensure uniform gasket pressure.
Visually inspect the front panel gasket. The gasket should be compressed to
about 75 to 80% of its original thickness. If not, gradually turn mounting
screws to further compress gasket.
6. If gasket is not adequately compressed and the mounting screws can no
longer be turned, loosen mounting screws, and check that mounting clip is
latched as close as possible to the panel.
7. Repeat from step #5 for tightening mounting screws.

A
76 www.redlion.net
BACKLIGHT OPTION (CUB7 SERIES)
Optional backlight versions of the CUB7 series require an external 9-28
VDC power supply. The external supply is connected between V+ and
Common terminals as shown by the solid line in the drawing.
RESET OPTIONS (CUB7 SERIES)
Connecting a wire from the RST. EN. (Reset Enable) Input terminal to
Common will enable the front panel Reset button.
Pulling the “RST.” input low causes the counter to reset. The “RST.” can
be pulled low by either a mechanical switch or solid-state transistor switch.
Switch load is 15 μA (max. voltage drop 0.5 V) when on. The off-state
leakage current must be less than 2 μA
Note: The RC protection circuit on the “RST.” Input causes a delay of
approximately 15 msec in Reset response.
BATTERY INSTALLATION
1. Remove all power to the unit before removing battery cover.
2. To remove battery cover, push upward in the direction of the arrow on rear
cover (See drawing at right), until the cover unlatches. Pull cover straight
out from unit to fully remove.
3. Remove old battery* and replace with an RLC battery (BNL10000).
Observe proper polarity when replacing battery as shown in drawing.
4. Replace cover. The battery cover is keyed so that it cannot be placed upside
down. The arrow on the rear of the cover should point toward the top of the
CUB7 series when properly installed
* - Dispose of properly.
WARNING: Lithium battery may explode if incinerated.
TROUBLESHOOTING
For further technical assistance, contact technical support at the appropriate
company numbers listed.

A
77
1-717-767-6511
zLCD, REFLECTIVE OR TRANSMISSIVE WITH YELLOW/GREEN
OR RED LED BACKLIGHTING (9-28 VDC power supply required for
versions with LED backlighting)
z0.35" (8.90 mm) HIGH DIGITS
zREPLACEABLE INTERNAL LITHIUM BATTERY PROVIDES UP TO
7 YEARS OF UNINTERRUPTED OPERATION
zNEMA 4X/IP65 SEALED FRONT BEZEL
zCOUNT INPUT FROM 10 to 300 VAC/DC (CUB7W)
zWIRE CONNECTION MADE VIA SCREW CLAMP TYPE
TERMINALS
zFITS DIN STANDARD CUT-OUT 1.77" (45 mm) x 0.874"
(22.2 mm)
DESCRIPTION
The CUB7 series is an 8-digit miniature counter with large 0.35 inch (8.90
mm) high digits. It has an LCD read-out available in Positive Image Reflective,
Negative Image Transmissive with yellow/green backlighting or red
backlighting. The backlight versions require an external 9 to 28 VDC power
supply.
The CUB7 series use a CMOS LSI counter circuit chip, mounted on a gold-
plated substrate, that is electrically connected by ultrasonic wire-bonding.
Proven micro-electronic assembly and manufacturing techniques provide these
units with the reliability and dependability required for industrial service.
The CUB7 series is housed in a lightweight, high impact plastic case with a
clear viewing window. The sealed front panel with the silicone rubber reset
button meets NEMA 4X/IP65 specifications for wash-down and/or dusty
environments, when properly installed.
SAFETY SUMMARY
All safety related regulations, local codes and instructions that appear in the
manual or on equipment must be observed to ensure personal safety and to
prevent damage to either the instrument or equipment connected to it. If
equipment is used in a manner not specified by the manufacturer, the protection
provided by the equipment may be impaired.
Do not use this unit to directly command motors, valves, or other actuators
not equipped with safeguards. To do so, can be potentially harmful to persons
or equipment in the event of a fault to the unit.
SPECIFICATIONS
1. DISPLAY: 8-digit LCD, 0.35" (8.90 mm) high digits.
2. POWER SOURCE: Replaceable Internal 3.0 V lithium battery to provide up
to 7 years of continuous operation. (Battery life is dependent upon usage.
Count and reset contacts that remain closed for long periods of time reduce
battery life.)
3. BACKLIGHT POWER REQUIREMENTS: 9 to 28 VDC; 35 mA. typical,
50 mA max. Above 26 VDC, derate max. operating temperature to 40°C.
4. INPUTS: VIL (low) = 0.5 V max
Low speed input: 10 to 300 VAC/DC, 50/60 Hz, 30 cps max. 150 V max
for backlight versions. Unit counts on positive going edge.
5. REMOTE RESET: 15 msec min. pulse width (active low) from 3.0 V
bipolar output, an open collector transistor, or a switch contact to common.
MODEL CUB7W - MINIATURE ELECTRONIC 8 DIGIT COUNTER
DIMENSIONS In inches (mm) Note: Recommended minimum clearance (behind the panel) for mounting
clip installation is 2.15" (54.6) H x 3.00" (76.2) W.
PANEL CUT-OUT
CAUTION: Risk of Danger.
Read complete instructions prior to
installation and operation of the unit.
ORDERING INFORMATION
*Battery is included with unit.
MODEL NO. DESCRIPTION PART NUMBERS
CUB7W *
Counter Positive Image Reflective CUB7W000
Counter w/Yel-Grn Backlighting CUB7W010
Counter w/Red Backlighting CUB7W020
BNL 3 V Lithium Battery BNL10000
For more information on Pricing, Enclosures & Panel Mount Kits refer to the
RLC Catalog or contact your local RLC distributor.

A
78 www.redlion.net
6. CERTIFICATIONS AND COMPLIANCES:
SAFETY
IEC 61010-1, EN 61010-1: Safety requirements for electrical equipment
for measurement, control, and laboratory use, Part 1.
IP65 Enclosure rating (Face only), IEC 529
Type 4X Enclosure rating (Face only), UL50
ELECTROMAGNETIC COMPATIBILITY
Notes:
1. Burst to DC backlight power had a power line filter installed RLC
#LFIL0000 or equivalent at the unit.
2. Self-recoverable loss of performance during EMI disturbance at 10
V/rms to backlight power lines.
LCD segments may flicker during EMI disturbance.
For operation without loss of performance:
Install power line filter RLC #LFIL0000 or equivalent at the unit.
Refer to the EMC Installation Guidelines section of this bulletin for
additional information.
7. ENVIRONMENTAL CONDITIONS:
Operating Temperature Range: 0 to 50°C Derate max. operating
temperature to 40°C above 26 VDC. (Backlight versions)
Storage Temperature Range: -30 to 80°C
Operating and Storage Humidity: 85% max. (non-condensing) from 0°C to
50°C.
Vibration According to IEC 68-2-6: 5 to 500 Hz, in X, Y, Z direction for 1.5
hours, 5g’s.
Shock According to IEC 68-2-27: Operational 30 g, 11 msec in 3 directions.
Altitude: Up to 2000 meters
8. CONSTRUCTION: High impact plastic case with clear viewing window.
The front panel meets NEMA 4X/IP65 requirements for indoor use when
properly installed. Installation Category I, Pollution Degree 2. Panel gasket
and mounting clip included.
9. WEIGHT: 2 oz. (57 grams) [with battery]
EMC INSTALLATION GUIDELINES
Although this unit is designed with a high degree of immunity to
ElectroMagnetic Interference (EMI), proper installation and wiring methods
must be followed to ensure compatibility in each application. The type of the
electrical noise, source or coupling method into the unit may be different for
various installations. In extremely high EMI environments, additional measures
may be needed. The unit becomes more immune to EMI with fewer I/O
connections. Cable length, routing and shield termination are very important
and can mean the difference between a successful installation or a troublesome
installation. Listed below are some EMC guidelines for successful installation
in an industrial environment.
1. Use shielded (screened) cables for all Signal and Control inputs. The shield
(screen) pigtail connection should be made as short as possible. The
connection point for the shield depends somewhat upon the application.
Listed below are the recommended methods of connecting the shield, in order
of their effectiveness.
a. Connect the shield only at the panel where the unit is mounted to earth
ground (protective earth).
b. Connect the shield to earth ground at both ends of the cable, usually when
the noise source frequency is above 1 MHz.
c. Connect the shield to common of the unit and leave the other end of the
shield unconnected and insulated from earth ground.
2. Never run Signal or Control cables in the same conduit or raceway with AC
power lines, conductors feeding motors, solenoids, SCR controls, and
heaters, etc. The cables should be run in metal conduit that is properly
grounded. This is especially useful in applications where cable runs are long
and portable two-way radios are used in close proximity or if the installation
is near a commercial radio transmitter.
3. Signal or Control cables within an enclosure should be routed as far away as
possible from contactors, control relays, transformers, and other noisy
components.
4. In extremely high EMI environments, the use of external EMI suppression
devices, such as ferrite suppression cores, is effective. Install them on Signal
and Control cables as close to the unit as possible. Loop the cable through the
core several times or use multiple cores on each cable for additional protection.
Install line filters on the power input cable to the unit to suppress power line
interference. Install them near the power entry point of the enclosure. The
following EMI suppression devices (or equivalent) are recommended:
Ferrite Suppression Cores for signal and control cables:
Fair-Rite # 0443167251 (RLC #FCOR0000)
TDK # ZCAT3035-1330A
Steward #28B2029-0A0
Line Filters for input power cables:
Schaffner # FN610-1/07 (RLC #LFIL0000)
Schaffner # FN670-1.8/07
Corcom #1VR3
Note: Reference manufacturer’s instructions when installing a line filter.
5. Long cable runs are more susceptible to EMI pickup than short cable runs.
Therefore, keep cable runs as short as possible.
WIRING CONNECTIONS
The electrical connections are made via screw-clamp terminals located on the
back of the unit. All conductors should meet voltage and current ratings for each
terminal. Also cabling should conform to appropriate standards of good
installation, local codes and regulations. It is recommended that power supplied
to the unit (AC or DC) be protected by a fuse or circuit breaker. When wiring
the unit, use the battery cover to identify the wire position with the proper
function. Strip the wire, leaving approximately 1/4" bare wire exposed (stranded
wires should be tinned with solder). Insert the wire under the screw-clamp and
tighten down the screw until the wire is clamped in tightly. Each terminal can
accept up to two #14 AWG wires.
WARNING: Lithium battery may explode if incinerated. All leads
will be at the same line potential as the input leads.
EN 61000-4-2
Enclosure class B
Power mains class B
EN 55022RF interference
Emissions to EN 50081-1
150 KHz - 80 MHz
Level 3; 10 V/rms 2
EN 61000-4-6RF conducted interference
Level 3; 2 Kv power
Level 4; 2 Kv I/O 1
EN 61000-4-4Fast transients (burst)
80 MHz - 1 GHz
Level 3; 10 V/m EN 61000-4-3Electromagnetic RF fields
Level 3; 8 Kv air
Level 2; 4 Kv contact Electrostatic discharge
Level 4; 30 A/m
Level 3; 10 V/m
EN 61000-4-8
ENV 50204
Power frequency magnetic fields
Simulation of cordless telephone
200 Hz, 50% duty cycle
Immunity to EN 50082-2
900 MHz ±5 MHz
TROUBLESHOOTING
For further technical assistance, contact technical support at the appropriate
company numbers listed.

A
79
1-717-767-6511
L. S. INPUT, 30 CPS MAX.
The CUB7W accepts most machine control voltage signals. The input accepts
AC (50/60 Hz) or DC control voltages from 10 to 300 V at count speeds up to
30 cps. The unit counts on the positive going edge of the input signal.
WARNING: Any lead may be at hazardous live input potential.
External wiring and devices connected to the unit must be rated
the same as applied signal input voltage and be properly isolated
from Class 2 or SELV circuitry.
INSTALLATION ENVIRONMENT
The unit should be installed in a location that does not exceed the maximum
operating temperature and provides good air circulation. Placing the unit near
devices that generate excessive heat should be avoided.
The bezel should be cleaned only with a soft cloth and neutral soap product.
Do NOT use solvents.
Continuous exposure to direct sunlight may accelerate the aging process of
the bezel.
Do not use tools of any kind (screwdrivers, pens, pencils, etc.) to operate
the keypad of the unit.
Installation
The CUB7 series of products meets NEMA 4X/IP65 requirements for
indoor use, when properly installed. The units are intended to be mounted into
an enclosed panel. The viewing window and reset button are factory sealed for
a washdown environment. A sponge rubber gasket and mounting clip are
provided for installing the unit in the panel cut-out.
The following procedure assures proper installation:
1. Cut panel opening to specified dimensions. Remove burrs and clean around
panel opening.
2. Carefully remove and discard the center section of the gasket. Slide the
panel gasket over the rear of the unit to the back of the bezel. Insert the
mounting screws onto both sides of mounting clip. Tip of screw should
NOT project from hole in mounting clip.
3. Install CUB7 unit through the panel cut-out until front bezel flange contacts
the panel.
4. Slide the mounting clip over the rear of the unit until the clip is against the
back of the panel. The mounting clip has latching features which engage
into mating features on the CUB7 housing.
Note: It is necessary to hold the unit in place when sliding mounting clip
into position.
5. Alternately tighten each screw to ensure uniform gasket pressure.
Visually inspect the front panel gasket. The gasket should be compressed to
about 75 to 80% of its original thickness. If not, gradually turn mounting
screws to further compress gasket.
6. If gasket is not adequately compressed and the mounting screws can no
longer be turned, loosen mounting screws, and check that mounting clip is
latched as close as possible to the panel.
7. Repeat from step #5 for tightening mounting screws.
BATTERY INSTALLATION
1. Remove all power to the unit before removing battery cover.
2. To remove battery cover, push upward in the direction of the arrow on rear
cover (See drawing at right), until the cover unlatches. Pull cover straight
out from unit to fully remove.
3. Remove old battery* and replace with an RLC battery (BNL10000).
Observe proper polarity when replacing battery as shown in drawing.
4. Replace cover. The battery cover is keyed so that it cannot be placed upside
down. The arrow on the rear of the cover should point toward the top of the
CUB7 series when properly installed
* - Dispose of properly.
WARNING: Lithium battery may explode if incinerated.

A
80 www.redlion.net
BACKLIGHT OPTION (CUB7 SERIES)
Optional backlight versions of the CUB7 series require an external 9-28
VDC power supply. The external supply is connected between V+ and
Common terminals as shown by the solid line in the drawing.
WARNING: When connecting the signal wiring for a backlit
CUB7W measuring an AC input voltage, the neutral of the
single phase AC signal is connected to Terminal 1 (COM), and
line (hot) is connected to Terminal 4 (LS) as shown by the
dashed line in the drawing. The DC supply for the backlighting
is connected between V+ and Common as shown by the solid
line in the drawing. Three phase AC applications require an
isolation transformer.
RESET OPTIONS (CUB7 SERIES)
Connecting a wire from the RST. EN. (Reset Enable) Input terminal to
Common will enable the front panel Reset button.
Pulling the “RST.” input low causes the counter to reset. The “RST.” can
be pulled low by either a mechanical switch or solid-state transistor switch.
Switch load is 15 μA (max. voltage drop 0.5 V) when on. The off-state leakage
current must be less than 2 μA
Note: The RC protection circuit on the “RST.” Input causes a delay of
approximately 15 msec in Reset response.

A
81
1-717-767-6511
zLCD, REFLECTIVE OR TRANSMISSIVE WITH YELLOW/GREEN
OR RED LED BACKLIGHTING (9-28 VDC power supply required for
versions with LED backlighting)
z0.35" (8.90 mm) HIGH DIGITS
zREPLACEABLE INTERNAL LITHIUM BATTERY PROVIDES UP TO
7 YEARS OF UNINTERRUPTED OPERATION
zNEMA 4X/IP65 SEALED FRONT BEZEL
zCOUNT INPUT FROM 10 to 30 VAC/DC
zWIRE CONNECTION MADE VIA SCREW CLAMP TYPE
TERMINALS
zFITS DIN STANDARD CUT-OUT 1.77" (45 mm) x 0.874"
(22.2 mm)
DESCRIPTION
The CUB7 series is an 8-digit miniature counter with large 0.35 inch (8.90
mm) high digits. It has an LCD read-out available in Positive Image Reflective,
Negative Image Transmissive with yellow/green backlighting or red
backlighting. The backlight versions require an external 9 to 28 VDC power
supply.
The CUB7 series use a CMOS LSI counter circuit chip, mounted on a gold-
plated substrate, that is electrically connected by ultrasonic wire-bonding.
Proven micro-electronic assembly and manufacturing techniques provide these
units with the reliability and dependability required for industrial service.
The CUB7 series is housed in a lightweight, high impact plastic case with a
clear viewing window. The sealed front panel with the silicone rubber reset
button meets NEMA 4X/IP65 specifications for wash-down and/or dusty
environments, when properly installed.
SAFETY SUMMARY
All safety related regulations, local codes and instructions that appear in the
manual or on equipment must be observed to ensure personal safety and to
prevent damage to either the instrument or equipment connected to it. If
equipment is used in a manner not specified by the manufacturer, the protection
provided by the equipment may be impaired.
Do not use this unit to directly command motors, valves, or other actuators
not equipped with safeguards. To do so, can be potentially harmful to persons
or equipment in the event of a fault to the unit.
SPECIFICATIONS
1. DISPLAY: 8-digit LCD, 0.35" (8.90 mm) high digits.
2. POWER SOURCE: Replaceable Internal 3.0 V lithium battery to provide up
to 7 years of continuous operation. (Battery life is dependent upon usage.
Count and reset contacts that remain closed for long periods of time reduce
battery life.)
3. BACKLIGHT POWER REQUIREMENTS: 9 to 28 VDC; 35 mA. typical,
50 mA max. Above 26 VDC, derate max. operating temperature to 40°C.
Must use a NEC Class 2 or SELV rated power supply.
4. INPUTS: VIL (low) = 0.5 V max
Low speed input: 10 to 30 VAC/DC, 50/60 Hz, 30 cps max. Unit counts
on positive going edge.
5. REMOTE RESET: 15 msec min. pulse width (active low) from 3.0 V
bipolar output, an open collector transistor, or a switch contact to common.
MODEL CUB7W3 - MINIATURE ELECTRONIC 8 DIGIT COUNTER
DIMENSIONS In inches (mm) Note: Recommended minimum clearance (behind the panel) for mounting
clip installation is 2.15" (54.6) H x 3.00" (76.2) W.
PANEL CUT-OUT
CAUTION: Risk of Danger.
Read complete instructions prior to
installation and operation of the unit.
ORDERING INFORMATION
*Battery is included with unit.
MODEL NO. DESCRIPTION PART NUMBERS
CUB7W3 *
Counter Positive Image Reflective CUB7W300
Counter w/Yel-Grn Backlighting CUB7W310
Counter w/Red Backlighting CUB7W320
BNL 3 V Lithium Battery BNL10000
For more information on Pricing, Enclosures & Panel Mount Kits refer to the
RLC Catalog or contact your local RLC distributor.
C
C
US LISTED
US LISTED
UL
R
IND. CONT. EQ.
51EB

A
82 www.redlion.net
6. CERTIFICATIONS AND COMPLIANCES:
SAFETY
UL Listed, File # E137808, UL508, CSA C22.2 No. 14-M95
LISTED by Und. Lab. Inc. to U.S. and Canadian safety standards
Type 4X Indoor Enclosure rating (Face only), UL50
IEC 61010-1, EN 61010-1: Safety requirements for electrical equipment
for measurement, control, and laboratory use, Part 1.
IP65 Enclosure rating (Face only), IEC 529
ELECTROMAGNETIC COMPATIBILITY
Notes:
1. Burst to DC backlight power had a power line filter installed RLC
#LFIL0000 or equivalent at the unit.
2. Self-recoverable loss of performance during EMI disturbance at 10
V/rms to backlight power lines.
LCD segments may flicker during EMI disturbance.
For operation without loss of performance:
Install power line filter RLC #LFIL0000 or equivalent at the unit.
Refer to the EMC Installation Guidelines section of this bulletin for
additional information.
7. ENVIRONMENTAL CONDITIONS:
Operating Temperature Range: 0 to 50°C Derate max. operating
temperature to 40°C above 26 VDC. (Backlight versions)
Storage Temperature Range: -30 to 80°C
Operating and Storage Humidity: 85% max. (non-condensing) from 0°C to
50°C.
Vibration According to IEC 68-2-6: 5 to 500 Hz, in X, Y, Z direction for 1.5
hours, 5 g’s.
Shock According to IEC 68-2-27: Operational 30 g, 11 msec in 3 directions.
Altitude: Up to 2000 meters
8. CONSTRUCTION: High impact plastic case with clear viewing window.
The front panel meets NEMA 4X/IP65 requirements for indoor use when
properly installed. Installation Category I, Pollution Degree 2. Panel gasket
and mounting clip included.
9. CONNECTIONS: Wire clamping screw terminals
Wire Strip Length: 0.3" (7.5 mm).
Wire Gage: 30-14 AWG copper wire
Torque: 5 inch-pounds (0.565 N-m) max.
10. WEIGHT: 2 oz. (57 grams) [with battery]
EN 61000-4-2
Enclosure class B
Power mains class B
EN 55022RF interference
Emissions to EN 50081-1
150 KHz - 80 MHz
Level 3; 10 V/rms 2
EN 61000-4-6RF conducted interference
Level 3; 2 Kv power
Level 4; 2 Kv I/O 1
EN 61000-4-4Fast transients (burst)
80 MHz - 1 GHz
Level 3; 10 V/m EN 61000-4-3Electromagnetic RF fields
Level 3; 8 Kv air
Level 2; 4 Kv contact Electrostatic discharge
Level 4; 30 A/m
Level 3; 10 V/m
EN 61000-4-8
ENV 50204
Power frequency magnetic fields
Simulation of cordless telephone
200 Hz, 50% duty cycle
Immunity to EN 50082-2
900 MHz ±5 MHz
EMC INSTALLATION GUIDELINES
Although this unit is designed with a high degree of immunity to
ElectroMagnetic Interference (EMI), proper installation and wiring methods
must be followed to ensure compatibility in each application. The type of the
electrical noise, source or coupling method into the unit may be different for
various installations. In extremely high EMI environments, additional measures
may be needed. The unit becomes more immune to EMI with fewer I/O
connections. Cable length, routing and shield termination are very important
and can mean the difference between a successful installation or a troublesome
installation. Listed below are some EMC guidelines for successful installation
in an industrial environment.
1. Use shielded (screened) cables for all Signal and Control inputs. The shield
(screen) pigtail connection should be made as short as possible. The
connection point for the shield depends somewhat upon the application.
Listed below are the recommended methods of connecting the shield, in order
of their effectiveness.
a. Connect the shield only at the panel where the unit is mounted to earth
ground (protective earth).
b. Connect the shield to earth ground at both ends of the cable, usually when
the noise source frequency is above 1 MHz.
c. Connect the shield to common of the unit and leave the other end of the
shield unconnected and insulated from earth ground.
2. Never run Signal or Control cables in the same conduit or raceway with AC
power lines, conductors feeding motors, solenoids, SCR controls, and
heaters, etc. The cables should be run in metal conduit that is properly
grounded. This is especially useful in applications where cable runs are long
and portable two-way radios are used in close proximity or if the installation
is near a commercial radio transmitter.
3. Signal or Control cables within an enclosure should be routed as far away as
possible from contactors, control relays, transformers, and other noisy
components.
4. In extremely high EMI environments, the use of external EMI suppression
devices, such as ferrite suppression cores, is effective. Install them on Signal
and Control cables as close to the unit as possible. Loop the cable through the
core several times or use multiple cores on each cable for additional protection.
Install line filters on the power input cable to the unit to suppress power line
interference. Install them near the power entry point of the enclosure. The
following EMI suppression devices (or equivalent) are recommended:
Ferrite Suppression Cores for signal and control cables:
Fair-Rite # 0443167251 (RLC #FCOR0000)
TDK # ZCAT3035-1330A
Steward #28B2029-0A0
Line Filters for input power cables:
Schaffner # FN610-1/07 (RLC #LFIL0000)
Schaffner # FN670-1.8/07
Corcom #1VR3
Note: Reference manufacturer’s instructions when installing a line filter.
5. Long cable runs are more susceptible to EMI pickup than short cable runs.
Therefore, keep cable runs as short as possible
WIRING CONNECTIONS
The electrical connections are made via screw-clamp terminals located on the
back of the unit. All conductors should meet voltage and current ratings for each
terminal. Also cabling should conform to appropriate standards of good
installation, local codes and regulations. It is recommended that power supplied
to the unit (AC or DC) be protected by a fuse or circuit breaker. When wiring
the unit, use the battery cover to identify the wire position with the proper
function. Strip the wire, leaving approximately 1/4" bare wire exposed (stranded
wires should be tinned with solder). Insert the wire under the screw-clamp and
tighten down the screw until the wire is clamped in tightly. Each terminal can
accept up to two #14 AWG wires. WARNING: Lithium battery may explode if incinerated. All leads
will be at the same line potential as the input leads.

A
83
1-717-767-6511
L. S. INPUT, 30 CPS MAX.
The CUB7W3 accepts most machine control voltage signals. The input
accepts AC (50/60 Hz) or DC control voltages from 10 to 30 V at count
speeds up to 30 cps. The unit counts on the positive going edge of the input
signal.
INSTALLATION ENVIRONMENT
The unit should be installed in a location that does not exceed the maximum
operating temperature and provides good air circulation. Placing the unit near
devices that generate excessive heat should be avoided.
The bezel should be cleaned only with a soft cloth and neutral soap product.
Do NOT use solvents.
Continuous exposure to direct sunlight may accelerate the aging process of
the bezel.
Do not use tools of any kind (screwdrivers, pens, pencils, etc.) to operate
the keypad of the unit.
Installation
The CUB7 series of products meets NEMA 4X/IP65 requirements for
indoor use, when properly installed. The units are intended to be mounted into
an enclosed panel. The viewing window and reset button are factory sealed for
a washdown environment. A sponge rubber gasket and mounting clip are
provided for installing the unit in the panel cut-out.
The following procedure assures proper installation:
1. Cut panel opening to specified dimensions. Remove burrs and clean around
panel opening.
2. Carefully remove and discard the center section of the gasket. Slide the
panel gasket over the rear of the unit to the back of the bezel. Insert the
mounting screws onto both sides of mounting clip. Tip of screw should
NOT project from hole in mounting clip.
3. Install CUB7 unit through the panel cut-out until front bezel flange contacts
the panel.
4. Slide the mounting clip over the rear of the unit until the clip is against the
back of the panel. The mounting clip has latching features which engage
into mating features on the CUB7 housing.
Note: It is necessary to hold the unit in place when sliding mounting clip
into position.
5. Alternately tighten each screw to ensure uniform gasket pressure.
Visually inspect the front panel gasket. The gasket should be compressed to
about 75 to 80% of its original thickness. If not, gradually turn mounting
screws to further compress gasket.
6. If gasket is not adequately compressed and the mounting screws can no
longer be turned, loosen mounting screws, and check that mounting clip is
latched as close as possible to the panel.
7. Repeat from step #5 for tightening mounting screws.
BATTERY INSTALLATION
1. Remove all power to the unit before removing battery cover.
2. To remove battery cover, push upward in the direction of the arrow on rear
cover (See drawing at right), until the cover unlatches. Pull cover straight
out from unit to fully remove.
3. Remove old battery* and replace with an RLC battery (BNL10000).
Observe proper polarity when replacing battery as shown in drawing.
4. Replace cover. The battery cover is keyed so that it cannot be placed upside
down. The arrow on the rear of the cover should point toward the top of the
CUB7 series when properly installed
* - Dispose of properly.
WARNING: Lithium battery may explode if incinerated.

A
84 www.redlion.net
BACKLIGHT OPTION (CUB7 SERIES)
Optional backlight versions of the CUB7 series require an external 9-28
VDC power supply. The external supply is connected between V+ and
Common terminals as shown by the solid line in the drawing.
RESET OPTIONS (CUB7 SERIES)
Connecting a wire from the RST. EN. (Reset Enable) Input terminal to
Common will enable the front panel Reset button.
Pulling the “RST.” input low causes the counter to reset. The “RST.” can
be pulled low by either a mechanical switch or solid-state transistor switch.
Switch load is 15 μA (max. voltage drop 0.5 V) when on. The off-state leakage
current must be less than 2 μA
Note: The RC protection circuit on the “RST.” Input causes a delay of
approximately 15 msec in Reset response.
TROUBLESHOOTING
For further technical assistance, contact technical support at the appropriate
company numbers listed.

A
85
1-717-767-6511
DESCRIPTION
The CUB7P is an 8-digit miniature programmable counter with large 0.35
inch (8.90 mm) high digits. It has an LCD read-out available in Positive Image
Reflective, Negative Image Transmissive with yellow/green backlighting, or red
backlighting. Backlight units require an external 9 to 28 VDC power supply.
The CUB7P is available in either Low Speed Contact or High Speed Logic.
The Contact versions (CUB7P0xxx) operate from a switch contact or an NPN
open collector transistor. The Logic versions (CUB7P2xx) operate from 3 VDC
logic output or from an NPN open collector transistor.
The CUB7P has a programmable prescaler that can be set for any value
between 0.0001 and 1.9999. The decimal point position can be set anywhere
from 0 (no D.P.) to 0.000000 or no Leading Zero Blanking. Both the prescaler
and DP selection are accessed using the front panel PGM and RESET push
buttons. See Programming for details. Note that the count, prescaler and DP
values will be lost if the battery is removed. See BATTERY INSTALLATION
for additional information.
The CUB7P counters use a CMOS LSI chip, mounted on a gold-plated
substrate, that is electrically connected by ultrasonic wire-bonding. Proven
micro-electronic assembly and manufacturing techniques provide these units
with the reliability and dependability required for industrial service.
The CUB7P series is housed in a lightweight, high impact plastic case with a
clear viewing window. The sealed front panel with the silicone rubber buttons
meets NEMA 4X/IP65 specifications for wash-down and/or dusty
environments, when properly installed.
SAFETY SUMMARY
All safety related regulations, local codes and instructions that appear in the
manual or on equipment must be observed to ensure personal safety and to
prevent damage to either the instrument or equipment connected to it. If
equipment is used in a manner not specified by the manufacturer, the protection
provided by the equipment may be impaired.
Do not use this unit to directly command motors, valves, or other actuators
not equipped with safeguards. To do so, can be potentially harmful to persons
or equipment in the event of a fault to the unit.
OLCD, POSITIVE IMAGE REFLECTIVE OR NEGATIVE IMAGE
TRANSMISSIVE WITH YELLOW/GREEN OR RED LED
BACKLIGHTING (9-28 VDC power supply required for versions with
LED backlighting)
OAVAILABLE WITH LOW SPEED CONTACT (30 Hz MAX.), HIGH
SPEED LOGIC (10 KHz MAX.)
OPRESCALER FROM 0.0001 TO 1.9999
OSELECTABLE DECIMAL POINTS
OREPLACEABLE INTERNAL LITHIUM BATTERY PROVIDES UP
TO 6 YEARS OF UNINTERRUPTED OPERATION (Battery Included)
OWIRE CONNECTIONS VIA SCREW CLAMP TYPE TERMINALS
OFRONT PANEL AND REMOTE RESET INPUT
ONEMA 4X/IP65 SEALED FRONT BEZEL
OBOTH FRONT PANEL PROGRAM AND RESET BUTTONS ARE
INDIVIDUALLY ENABLED
MODEL CUB7P PROGRAMMABLE ELECTRONIC 8-DIGIT COUNTER
DIMENSIONS In inches (mm) Note: Recommended minimum clearance (behind the panel) for mounting clip installation
is 2.15" (54.6) H x 3.00" (76.2) W.
PANEL CUT-OUT
C
C
US LISTED
US LISTED
UL
R
IND. CONT. EQ.
51EB
CAUTION: Risk of Danger.
Read complete instructions prior to
installation and operation of the unit.
BNL10000
CUB7P220
CUB7P210
CUB7P200
CUB7P020
CUB7P010
CUB7P000
PART NUMBER
Counter; Positive Image Reflective
Counter, w/Yel-Grn Backlighting
Counter; w/Red Backlighting
Counter; Positive Image Reflective
Counter, w/Yel-Grn Backlighting
Counter; w/Red Backlighting
Replacement 3 V Lithium BatteryBNL
HIGH SPEED
LOGIC INPUT
*CUB7P
LOW SPEED
CONTACT INPUT
MODEL NO. DESCRIPTION
* Battery is included with unit.
ORDERING INFORMATION

A
86 www.redlion.net
PROGRAMMING
The CUB7P has programmable prescale values and decimal point positions.
These values are changed using the front panel push buttons. Connect wires
between RST EN (Reset Enable) and COM. (Common); and between HS
(Program Enable) and COM. (Common) to enable front panel push buttons.
Note: Upon entering the PGM mode for the first time, the Prescaler value is
set to 0.0000. Some value between 0.0001 and 1.9999 must be entered in
order for the CUB7P to operate properly. Previously stored values are
retained until changed by the user.
With the front panel push buttons enabled, press the PGM button to enter the
program mode. The CUB7P display will change to the current prescale value,
with the least significant digit flashing at a 2 Hz rate. The prescale value can be
set to any value between 0.0001 and 1.9999. Press the RST button to increment
the flashing digit to the desired value. Pressing the PGM button will lock in the
value of the flashing digit and advance to the next significant digit. The most
significant digit can only be set to 0 or 1. When the entire prescale value has
been programmed, press the PGM button once to enable decimal point
selection. Any new count pulses will be accumulated using the new prescale
value.
After performing the prescale selection, the display will show 0.0000.
Decimal point positions can be set for:
Press the RST button until the desired decimal point position is displayed.
Press the PGM button to select that position and return to the counter mode.
Remove the wire from the HS (Program Enable) terminal to prevent accidental
changes to the programmed values.
Note: The incrementing edge of the count signal will change when the PGM
button is pressed for the first time. To avoid incorrect display information, it is
recommended that the CUB7P be reset after making programming changes.
COUNT EDGE
Accessing program mode for the first time will complement the
incrementing edge of the count signal. The table below shows the incrementing
edge of the count signal for the different versions of the CUB7P.
SPECIFICATIONS
1. DISPLAY: 8-digit LCD, 0.35" (8.90 mm) high digits.
2. POWER SOURCE: Replaceable Internal 3.0 V lithium battery to provide up
to 6 years of continuous operation. (Battery life is dependent upon usage.
Contacts that remain closed for long periods of time reduce battery life.)
3. BACKLIGHT POWER REQUIREMENTS: 9 to 28 VDC; 35 mA. typical,
50 mA max. Above 26 VDC, derate max. operating temperature to 40°C.
Must use NEC Class 2 or SELV rated power supply.
4. SIGNAL INPUT: (LS terminal #4) See Count Edge under Programming for
incrementing edge of input signal.
Contact Input (CUB7P0xx): 30 Hz max. from Switch Contact or solid state
Transistor Switch to Common with a50% duty cycle. Contact burden 7 μA max.
Logic Input (CUB7P2xx): 10 KHz max. from a 3.0V bipolar output or 200
Hz max.from a solid state Transistor Switch to Common with a 50% duty
cycle. Contact burden 7 μA max.
5. REMOTE RESET: 15 msec min. pulse width (active low) from 3.0 V
bipolar output, an open collector transistor, or a switch contact to common.
6. ENVIRONMENTAL CONDITIONS:
Operating Temperature Range: 0 to 50°C Derate max. operating
temperature to 40°C above 26 VDC (Backlight versions).
Storage Temperature: -30 to 80°C
Operating and Storage Humidity: 85% max. relative humidity (non-
condensing) from 0°C to 50°C.
Vibration According to IEC 68-2-6: 5 to 500 Hz, in X, Y, Z direction for 1.5
hours, 5g’s.
Shock According to IEC 68-2-27: Operational 30 g, 11 msec in 3 directions.
Altitude: Up to 2000 meters
7. CERTIFICATIONS AND COMPLIANCES:
SAFETY
UL Listed, File # E137808, UL508, CSA C22.2 No. 14-M95
LISTED by Und. Lab. Inc. to U.S. and Canadian safety standards
Type 4X Indoor Enclosure rating (Face only), UL50
IEC-61010-1, EN 61010-1: Safety requirements for electrical equipment
for measurement, control, and laboratory use, Part 1.
IP65 Enclosure rating (Face only), IEC 529
ELECTROMAGNETIC COMPATIBILITY
Notes
1. Backlit powered units require a power line filter to be installed, RLC
LFIL0000 or equivalent, so as not to impair the function of the
backlighting.
Refer to EMC Installation Guidelines for additional information.
8. CONNECTIONS: Wire clamping screw terminals
Wire Strip Length: 0.3" (7.5 mm)
Wire Gage: 30-14 AWG copper wire
Torque: 5 inch-lbs (0.565 N-m) max.
9. CONSTRUCTION: High impact plastic case with clear viewing window.
The front panel meets NEMA 4X/IP65 requirements for indoor use when
properly installed. Installation Category I, Pollution Degree 2. Panel gasket
and mounting clip included.
10. WEIGHT: 2 oz. (57 grams) [with battery]
900 MHz ± 5 MHz
Immunity to EN 50082-2
200 Hz, 50% duty cycle
Electrostatic discharge EN 61000-4-2 Level 2; 4 Kv contact
Level 3; 8 Kv air
Electromagnetic RF fields EN 61000-4-3 Level 3; 10 V/m
80 MHz - 1 GHz
Fast transients (burst) EN 61000-4-4 Level 4; 2 Kv I/O
Level 3; 2 Kv power 1
RF conducted interference EN 61000-4-6 Level 3; 10 V/rms
150 KHz - 80 MHz
Simulation of cordless telephone ENV 50204 Level 3; 10 V/m
Emissions to EN 50081-1
RF interference EN 55022 Enclosure class B
VERSION AFTER INSTALLING OR
REPLACING BATTERY
AFTER ENTERING
PROGRAM MODE
CUB7P0 (Contact) Rising Edge Falling Edge
CUB7P2 (Logic) Rising Edge Falling Edge
0.0000 (Default)
0
0.00000
0.0
0.000000
0.00
00000000
0.000

A
87
1-717-767-6511
EMC INSTALLATION GUIDELINES
Although this unit is designed with a high degree of immunity to
ElectroMagnetic Interference (EMI), proper installation and wiring methods
must be followed to ensure compatibility in each application. The type of the
electrical noise, source or coupling method into the unit may be different for
various installations. In extremely high EMI environments, additional measures
may be needed. The unit becomes more immune to EMI with fewer I/O
connections. Cable length, routing and shield termination are very important
and can mean the difference between a successful or a troublesome installation.
Listed below are some EMC guidelines for successful installation in an
industrial environment.
1. Use shielded (screened) cables for all Signal and Control inputs. The shield
(screen) pigtail connection should be made as short as possible. The
connection point for the shield depends somewhat upon the application.
Listed below are the recommended methods of connecting the shield, in
order of their effectiveness.
a. Connect the shield only at the panel where the unit is mounted to earth
ground (protective earth).
b. Connect the shield to earth ground at both ends of the cable, usually when
the noise source frequency is above 1 MHz.
c. Connect the shield to common of the unit and leave the other end of the
shield unconnected and insulated from earth ground.
2. Never run Signal or Control cables in the same conduit or raceway with AC
power lines, conductors feeding motors, solenoids, SCR controls, and
heaters, etc. The cables should be run in metal conduit that is properly
grounded. This is especially useful in applications where cable runs are long
and portable two-way radios are used in close proximity or if the installation
is near a commercial radio transmitter.
3. Signal or Control cables within an enclosure should be routed as far away as
possible from contactors, control relays, transformers, and other noisy
components.
4. In extremely high EMI environments, the use of external EMI suppression
devices, such as ferrite suppression cores, is effective. Install them on Signal
and Control cables as close to the unit as possible. Loop the cable through the
core several times or use multiple cores on each cable for additional
protection. Install line filters on the power input cable to the unit to suppress
power line interference. Install them near the power entry point of the
enclosure. The following EMI suppression devices (or equivalent) are
recommended:
Ferrite Suppression Cores for signal and control cables:
Fair-Rite # 0443167251 (RLC #FCOR0000)
TDK # ZCAT3035-1330A
Steward #28B2029-0A0
Line Filters for input power cables:
Schaffner # FN610-1/07 (RLC #LFIL0000)
Schaffner # FN670-1.8/07
Corcom #1VR3
Note: Reference manufacturer’s instructions when installing a line filter.
5. Long cable runs are more susceptible to EMI pickup than short cable runs.
Therefore, keep cable runs as short as possible.
WIRING CONNECTIONS
The electrical connections are made via screw-clamp terminals located on
the back of the unit. All conductors should meet voltage and current ratings for
each terminal. Also, cabling should conform to appropriate standards of good
installation, local codes and regulations. It is recommended that power supplied
to the unit be protected by a fuse or circuit breaker. When wiring the unit, use
the battery cover to identify the wire position with the proper function. Strip the
wire, leaving approximately 1/4" bare wire exposed (stranded wires should be
tinned with solder). Insert the wire under the screw-clamp and tighten down the
screw until the wire is clamped in tightly. Each terminal can accept up to two
#14 AWG wires.
WARNING: Lithium battery may explode if incinerated.
BATTERY INSTALLATION
1. Remove all power to the unit before removing battery cover.
2. To remove the battery cover, push upward in the direction of the arrow on
the rear cover (See drawing below), until the cover unlatches. Pull the
cover straight out from unit to fully remove.
3. Remove old battery* and replace it with an RLC battery (BNL10000).
Observe proper polarity when replacing the battery as shown in the
drawing.
4. Replace the cover. The battery cover is keyed so that it cannot be placed
upside down. The arrow on the rear of the cover should point toward the
top of the CUB7P when properly installed.
* - Dispose of properly.
WARNING: Lithium battery may explode if incinerated.

A
88 www.redlion.net
RESET AND PROGRAM OPTIONS
Connecting a wire from the RST EN (Reset Enable) or the HS (Program
Enable) Input terminals to Common will enable the front panel Reset or
Program buttons respectively.
Pulling the “RST.” input low causes the counter to reset. The “RST.” can be
pulled low by either a mechanical switch or solid-state transistor switch. The
Switch load is 15 μA (max. voltage drop 0.5 V) when ON. The OFF-state
leakage current must be less than 2 μA.
Note: The RC protection circuit on the “RST.” Input causes a delay of
approximately 15 msec in Reset response.
The “LS.” Input allows the CUB7P to operate at speeds up to 10 KHz when
driven by bi-polar outputs or external circuits having an output impedance of
3.3 KΩor less. Input drive voltage must be limited to 3 V maximum to avoid
damage to the counter. CMOS and TTL Logic outputs can be loaded with a
resistor (RL) to limit drive voltage, or a voltage divider can be used as shown
for the PNP O.C. Transistor output.
L.S. INPUT; LOGIC VERSIONS (10 KHz MAX.)
TTL OR CMOS PNP O.C. TRANSISTOR NPN O.C.
OUTPUT OR BI-POLAR OUTPUT TRANSISTOR
FIG 1 FIG 2 FIG 3
R values for
Fig 2 & 3
+V R
+5 V 2.2 K
+12 V 10 K
+18 V 16 K
+24 V 24 K
INSTALLATION ENVIRONMENT
The unit should be installed in a location that does not exceed the maximum
operating temperature and provides good air circulation. Placing the unit near
devices that generate excessive heat should be avoided.
The bezel should be cleaned only with a soft cloth and neutral soap product.
Do NOT use solvents.
Continuous exposure to direct sunlight may accelerate the aging process of
the bezel.
Do not use tools of any kind (screwdrivers, pens, pencils, etc.) to operate the
push buttons of the unit.
INSTALLATION
The CUB7P meets NEMA 4X/IP65 requirements for indoor use when
properly installed. The units are intended to be mounted into an enclosed panel.
The viewing window and reset button are factory sealed for a washdown
environment. A sponge rubber gasket and mounting clip are provided for
installing the unit in the panel cut-out.
The following procedure assures proper installation:
1. Cut panel opening to specified dimensions. Remove burrs and clean around
panel opening.
2. Carefully remove and discard the center section of the gasket.
3. Slide the panel gasket over the rear of the counter body to the back of the
bezel. Install CUB7P unit through the panel cut-out.
4. Insert the mounting screws onto both sides of mounting clip. Tip of screw
should NOT project from hole in mounting clip.
5. Slide the mounting clip over the rear of the unit until the clip is against the
back of the panel. The mounting clip has latching features which engage
into mating features on the CUB7P housing.
6. Note: It is necessary to hold the unit in place when sliding mounting clip into
position.
7. Alternately tighten each screw to ensure uniform gasket pressure.
Visually inspect the front panel gasket. The gasket should be compressed to
about 75 to 80% of its original thickness. If not, gradually turn mounting
screws to further compress gasket.
8. If the gasket is not adequately compressed and the mounting screws can no
longer be turned, loosen mounting screws, and check that the mounting clip
is latched as close as possible to the panel.
9. Repeat from step #5 for tightening mounting screws.

A
89
1-717-767-6511
L.S. INPUT; CONTACT VERSIONS (30 Hz MAX.)
Connecting the “L.S.” Input to Common with a mechanical or solid-state
switch increments the counter. The switch load is 7 μA (max. voltage drop 0.5
V) when ON. The OFF-state leakage current must be less than 2 μA.
Reed switches, mercury wetted contacts, snap action limit switches, and
silver alloy relay contacts with wiping action are usually satisfactory for input
activation. Motor starter contacts, tungsten contacts, and brush-type contacts
should not be used.
PROGRAMMING EXAMPLES
SCALING A COUNTER
Example: An encoder generates 600 pulses per foot. The Desired Display is
tenths of inches. The Prescaler is determined using the formula below.
Prescaler =
Where:
Desired Display = The number of Desired
Display units (revolutions,
feet, 10ths of feet, meters,
etc.).
Number of Pulses = The number of pulses
required to achieve the
Desired Display
Decimal Point Value = The desired decimal point
placement on the display.
Example: Display tenths of inches when using
Prescaler =
= 10/50 = 0.2
1 (inch) x 10 (Decimal Point Value)
⎯⎯⎯⎯
600 pulses/foot x 1 foot/ 12 inches
Desired Display Units x Decimal Point Value
⎯⎯⎯⎯⎯
Number of Pulses
Decimal
Point Value Multiply By
0 1
0.0 10
0.00 100
0.000 1000
0.0000 10000
0.00000 100000
BACKLIGHT OPTION
Optional backlight versions of the CUB7P require an external 9 to 26 VDC
power supply. The external supply is connected between the V+ and common
terminals as shown in the drawing.
APPLICATION - TOTAL YARDS OF MATERIAL
A fabric manufacturer wants to know, as economically
as possible, how many whole yards of material his lines
are running. The CUB7P000 will meet his process
requirements. The encoder measuring the material,
generates a one pulse per foot output signal. To obtain the
desired display of yards measured, a prescale value of
0.3333 is programmed. To program the prescale value,
connect wires between RST EN (Reset Enable) and
COM. (Common); and between HS (Program Enable) and
COM. (Common) to enable the front panel push buttons
(See PROGRAMMING for more details.). Remove these
wires after programming to prevent accidental changes to
the prescale value. At the end of each shift, the machine
operator records the total shown on the display and resets
the counter to zero via key switch.
TROUBLESHOOTING
For further technical assistance, contact technical support at the appropriate company numbers listed.

A
90 www.redlion.net
DESCRIPTION
The CUB7P is an 8-digit miniature programmable counter with large 0.35
inch (8.90 mm) high digits. It has an LCD read-out available in Positive Image
Reflective, Negative Image Transmissive with yellow/green backlighting, or red
backlighting. Backlight units require an external 9 to 28 VDC power supply.
The CUB7P versions operate from a signal voltage of 10 to 300 V (AC 50/60
Hz or DC).
The CUB7P1 has a programmable prescaler that can be set for any value
between 0.0001 and 1.9999. The decimal point position can be set anywhere
from 0 (no D.P.) to 0.000000 or no Leading Zero Blanking. Both the prescaler
and DP selection are accessed using the front panel PGM and RESET push
buttons. See Programming for details. Note that the count, prescaler and DP
values will be lost if the battery is removed. See BATTERY INSTALLATION
for additional information.
The CUB7P counters use a CMOS LSI chip, mounted on a gold-plated
substrate, that is electrically connected by ultrasonic wire-bonding. Proven
micro-electronic assembly and manufacturing techniques provide these units
with the reliability and dependability required for industrial service.
The CUB7P series is housed in a lightweight, high impact plastic case with a
clear viewing window. The sealed front panel with the silicone rubber buttons
meets NEMA 4X/IP65 specifications for wash-down and/or dusty
environments, when properly installed.
SAFETY SUMMARY
All instructions that appear in the bulletin or on equipment, all safety related
regulations, and all local codes must be observed to ensure personal safety and
to prevent damage to either the instrument or equipment connected to it. If
equipment is used in a manner not specified by the manufacturer, the protection
provided by the equipment may be impaired.
CAUTION: Read complete
instructions prior to installation
and operation of the unit.
CAUTION: Risk of electric shock.
O3 (8 Digit 0.35") LCD DISPLAY OPTIONS (Reflective, Red
Transmissive, Yellow/Green Transmissive. 9 to 28 VDC power
supply required for versions w/ LED backlighting)
OAVAILABLE VOLTAGE INPUTS (10 TO 300 VAC/DC)
OPRESCALER FROM 0.0001 TO 1.9999
OSELECTABLE DECIMAL POINTS
OREPLACEABLE INTERNAL LITHIUM BATTERY PROVIDES UP
TO 6 YEARS OF UNINTERRUPTED OPERATION (Battery Included)
OWIRE CONNECTIONS VIA SCREW CLAMP TYPE TERMINALS
OFRONT PANEL AND REMOTE RESET INPUT
ONEMA 4X/IP65 SEALED FRONT BEZEL
OBOTH FRONT PANEL PROGRAM AND RESET BUTTONS ARE
INDIVIDUALLY ENABLED
MODEL CUB7P - PROGRAMMABLE ELECTRONIC 8-DIGIT COUNTER
DIMENSIONS In inches (mm)
Note: Recommended minimum clearance (behind the panel) for mounting clip installation
is 2.1" (53.4) H x 5.5" (140) W.
PANEL CUT-OUT
BNL10000
CUB7P120
CUB7P110
CUB7P100
PART NUMBER
Counter; Positive Image Reflective
Counter, w/Yel-Grn Backlighting
Counter; w/Red Backlighting
Replacement 3 V Lithium BatteryBNL
VOLTAGE
INPUT
*CUB7P
DESCRIPTIONMODEL NO.
* Battery is included with unit.
ORDERING INFORMATION

A
91
1-717-767-6511
SPECIFICATIONS
1. DISPLAY: 8-digit LCD, 0.35" (8.90 mm) high digits.
2. POWER SOURCE: Replaceable Internal 3.0 V lithium battery to provide up
to 6 years of continuous operation. (Battery life is dependent upon usage.
Contacts that remain closed for long periods of time reduce battery life.)
3. BACKLIGHT POWER REQUIREMENTS: 9 to 28 VDC; 35 mA. typical,
50 mA max. Above 26 VDC, derate max. operating temperature to 40°C.
4. SIGNAL INPUT: (LS terminal #4) See Count Edge under Programming for
incrementing edge of input signal.
Voltage Input (CUB7P1xx): 10 V min. to 300 V max. (AC 50/60 Hz. or DC) to
Common, 150 V max. for backlight versions. 30 cps max. Input current 0.5
mA max. ANY off-state leakage current may prevent counter from activating.
5. REMOTE RESET: 15 msec min. pulse width (active low) from 3.0 V
bipolar output, an open collector transistor, or a switch contact to common.
6. ENVIRONMENTAL CONDITIONS:
Operating Temperature Range: 0 to 50°C Derate max. operating
temperature to 40°C above 26 VDC (Backlight versions).
Storage Temperature: -30 to 80°C
Operating and Storage Humidity: 85% max. relative humidity (non-
condensing) from 0°C to 50°C.
Vibration According to IEC 68-2-6: Operational 5 to 500 Hz, in X, Y, Z
direction for 1.5 hours, 5 g’s.
Shock According to IEC 68-2-27: Operational 30 g, 11 msec in 3 directions.
Altitude: Up to 2000 meters
7. CERTIFICATIONS AND COMPLIANCES:
SAFETY
IEC-1010-1, EN 61010-1: Safety requirements for electrical equipment for
measurement, control, and laboratory use, Part 1.
IP65 Enclosure rating (Face only), IEC 529
Type 4X Enclosure rating (Face only), UL50
ELECTROMAGNETIC COMPATIBILITY
Notes
1. Backlit powered units require a power line filter to be installed, RLC
LFIL0000 or equivalent, so as not to impair the function of the
backlighting.
Refer to EMC Installation Guidelines for additional information.
8. CONSTRUCTION: High impact plastic case with clear viewing window.
The front panel meets NEMA 4X/IP65 requirements for indoor use when
properly installed. Installation Category I, Pollution Degree 2. Panel gasket
and mounting clip included.
9. WEIGHT: 2 oz. (57 grams) [with battery]
PROGRAMMING
The CUB7P has programmable prescale values and decimal point positions.
These values are changed using the front panel push buttons. Connect wires
between RST EN (Reset Enable) and COM. (Common); and between HS
(Program Enable) and COM. (Common) to enable front panel push buttons.
Note: Upon entering the PGM mode for the first time, the Prescaler value is
set to 0.0000. Some value between 0.0001 and 1.9999 must be entered in
order for the CUB7P to operate properly. Previously stored values are
retained until changed by the user.
With the front panel push buttons enabled, press the PGM button to enter the
program mode. The CUB7P display will change to the current prescale value,
with the least significant digit flashing at a 2 Hz rate. The prescale value can be
set to any value between 0.0001 and 1.9999. Press the RST button to increment
the flashing digit to the desired value. Pressing the PGM button will lock in the
value of the flashing digit and advance to the next significant digit. The most
significant digit can only be set to 0 or 1. When the entire prescale value has
been programmed, press the PGM button once to enable decimal point selection.
Any new count pulses will be accumulated using the new prescale value.
After performing the prescale selection, the display will show 0.0000.
Decimal point positions can be set for:
Press the RST button until the desired decimal point position is displayed.
Press the PGM button to select that position and return to the counter mode.
Remove the wire from the HS (Program Enable) terminal to prevent accidental
changes to the programmed values.
Note: The incrementing edge of the count signal will change when the PGM
button is pressed for the first time. To avoid incorrect display information, it is
recommended that the CUB7P be reset after making programming changes.
COUNT EDGE
Accessing program mode for the first time will complement the incrementing
edge of the count signal. See below for the incrementing edge of the count signal
for the CUB7P1:
After installing or replacing battery: Falling Edge
After entering program mode: Rising Edge
EMC INSTALLATION GUIDELINES
Although this unit is designed with a high degree of immunity to
ElectroMagnetic Interference (EMI), proper installation and wiring methods
must be followed to ensure compatibility in each application. The type of the
electrical noise, source or coupling method into the unit may be different for
various installations. In extremely high EMI environments, additional measures
may be needed. The unit becomes more immune to EMI with fewer I/O
connections. Cable length, routing and shield termination are very important and
can mean the difference between a successful or a troublesome installation.
Listed below are some EMC guidelines for successful installation in an
industrial environment.
1. Use shielded (screened) cables for all Signal and Control inputs. The shield
(screen) pigtail connection should be made as short as possible. The
connection point for the shield depends somewhat upon the application.
Listed below are the recommended methods of connecting the shield, in
order of their effectiveness.
a. Connect the shield only at the panel where the unit is mounted to earth
ground (protective earth).
b. Connect the shield to earth ground at both ends of the cable, usually when
the noise source frequency is above 1 MHz.
c. Connect the shield to common of the unit and leave the other end of the
shield unconnected and insulated from earth ground.
2. Never run Signal or Control cables in the same conduit or raceway with AC
power lines, conductors feeding motors, solenoids, SCR controls, and
heaters, etc. The cables should be run in metal conduit that is properly
grounded. This is especially useful in applications where cable runs are
long and portable two-way radios are used in close proximity or if the
installation is near a commercial radio transmitter.
3. Signal or Control cables within an enclosure should be routed as far away
as possible from contactors, control relays, transformers, and other noisy
components.
4. In extremely high EMI environments, the use of external EMI suppression
devices, such as ferrite suppression cores, is effective. Install them on
Signal and Control cables as close to the unit as possible. Loop the cable
through the core several times or use multiple cores on each cable for
additional protection. Install line filters on the power input cable to the unit
to suppress power line interference. Install them near the power entry point
of the enclosure. The following EMI suppression devices (or equivalent) are
recommended:
900 MHz ± 5 MHz
Immunity to EN 50082-2
200 Hz, 50% duty cycle
Electrostatic discharge EN 61000-4-2 Level 2; 4 Kv contact
Level 3; 8 Kv air
Electromagnetic RF fields EN 61000-4-3 Level 3; 10 V/m
80 MHz - 1 GHz
Fast transients (burst) EN 61000-4-4 Level 4; 2 Kv I/O
Level 3; 2 Kv power 1
RF conducted interference EN 61000-4-6 Level 3; 10 V/rms
150 KHz - 80 MHz
Simulation of cordless telephone ENV 50204 Level 3; 10 V/m
Emissions to EN 50081-1
RF interference EN 55022 Enclosure class B
0.0000 (Default)
0
0.00000
0.0
0.000000
0.00
00000000
0.000

A
92 www.redlion.net
Ferrite Suppression Cores for signal and control cables:
Fair-Rite # 0443167251 (RLC #FCOR0000)
TDK # ZCAT3035-1330A
Steward #28B2029-0A0
Line Filters for input power cables:
Schaffner # FN610-1/07 (RLC #LFIL0000)
Schaffner # FN670-1.8/07
Corcom #1VR3
Note: Reference manufacturer’s instructions when installing a line filter.
5. Long cable runs are more susceptible to EMI pickup than short cable runs.
Therefore, keep cable runs as short as possible.
WIRING CONNECTIONS
The electrical connections are made via screw-clamp terminals located on
the back of the unit. All conductors should meet voltage and current ratings for
each terminal. Also, cabling should conform to appropriate standards of good
installation, local codes and regulations. It is recommended that power supplied
to the unit be protected by a fuse or circuit breaker. When wiring the unit, use
the battery cover to identify the wire position with the proper function. Strip the
wire, leaving approximately 1/4" bare wire exposed (stranded wires should be
tinned with solder). Insert the wire under the screw-clamp and tighten down the
screw until the wire is clamped in tightly. Each terminal can accept up to two
#14 AWG wires.
WARNING: Lithium battery may explode if incinerated.
CAUTION: All leads will be at the same line potential as the input
leads.
BATTERY INSTALLATION
1. Remove all power to the unit before removing battery cover.
2. To remove the battery cover, push upward in the direction of the arrow on
the rear cover (See drawing below), until the cover unlatches. Pull the
cover straight out from unit to fully remove.
3. Remove old battery* and replace it with an RLC battery (BNL10000).
Observe proper polarity when replacing the battery as shown in the
drawing.
4. Replace the cover. The battery cover is keyed so that it cannot be placed
upside down. The arrow on the rear of the cover should point toward the
top of the CUB7P when properly installed.
* - Dispose of properly.
WARNING: Lithium battery may explode if incinerated.
WARNING: Lithium battery may explode if incinerated. To
prevent damage to the unit, the voltage on all inputs must not
exceed 3.0 VDC with the following exceptions: V+ (all models -
28 VDC max.) and LS (voltage versions - 300 V max.).
INSTALLATION ENVIRONMENT
The unit should be installed in a location that does not exceed the maximum
operating temperature and provides good air circulation. Placing the unit near
devices that generate excessive heat should be avoided.
The bezel should be cleaned only with a soft cloth and neutral soap product.
Do NOT use solvents. Continuous exposure to direct sunlight may accelerate
the aging process of the bezel. Do not use tools of any kind (screwdrivers, pens,
pencils, etc.) to operate the push buttons of the unit.
INSTALLATION
The CUB7P meets NEMA 4X/IP65 requirements for indoor use when
properly installed. The units are intended to be mounted into an enclosed panel.
The viewing window and reset button are factory sealed for a washdown
environment. A sponge rubber gasket and mounting clip are provided for
installing the unit in the panel cut-out.
The
following
procedure assures
proper installation:
1. Cut panel opening to
specified dimensions. Remove burrs and clean around panel opening.
2. Carefully remove and discard the center section of the gasket.
3. Slide the panel gasket over the rear of the counter body to the back of the
bezel. Install CUB7P unit through the panel cut-out.
4. Insert the mounting screws onto both sides of mounting clip. Tip of screw
should NOT project from hole in mounting clip.
5. Slide the mounting clip over the rear of the unit until the clip is against the
back of the panel. The mounting clip has latching features which engage into
mating features on the CUB7P housing.
6. Note: It is necessary to hold the unit in place when sliding mounting clip into
position.
7. Alternately tighten each screw to ensure uniform gasket pressure.
Visually inspect the front panel gasket. The gasket should be compressed to
about 75 to 80% of its original thickness. If not, gradually turn mounting
screws to further compress gasket.
8. If the gasket is not adequately compressed and the mounting screws can no
longer be turned, loosen mounting screws, and check that the mounting clip
is latched as close as possible to the panel.
9. Repeat from step #5 for tightening mounting screws.
TROUBLESHOOTING
For further technical assistance, contact technical support at the appropriate
company numbers listed.

A
93
1-717-767-6511
RESET AND PROGRAM OPTIONS
Connecting a wire from the RST EN (Reset Enable) or the HS (Program
Enable) Input terminals to Common will enable the front panel Reset or
Program buttons respectively.
Pulling the “RST.” input low causes the counter to reset. The “RST.” can be
pulled low by either a mechanical switch or solid-state transistor switch. The
Switch load is 15 μA (max. voltage drop 0.5 V) when ON. The OFF-state
leakage current must be less than 2 μA.
Note: The RC protection circuit on the “RST.” Input causes a delay of
approximately 15 msec in Reset response.
L.S. INPUT; VOLTAGE VERSIONS (30 Hz MAX.)
The CUB7P accepts most machine control voltage signals. The input
accepts single phase AC (50/60 Hz) or DC control voltages from 10 to 300 V
at count speeds up to 30 Hz.. The counter increments when voltage is applied
between the LS input and Common. Any off-state leakage current may prevent
the counter from operating properly.
WARNING: If voltage input is connected to circuits above 30
Vrms, any lead may be at hazardous live input potential.
External wiring and devices connected to the unit must be rated
the same as applied signal input voltage and be properly
isolated from Class 2 or SELV circuitry.
PROGRAMMING EXAMPLES
SCALING A COUNTER
Example: An encoder generates 600 pulses per foot. The Desired Display is
tenths of inches. The Prescaler is determined using the formula below.
Prescaler =
Where:
Desired Display = The number of Desired
Display units (revolutions,
feet, 10ths of feet, meters,
etc.).
Number of Pulses = The number of pulses
required to achieve the
Desired Display
Decimal Point Value = The desired decimal point
placement on the display.
Example: Display tenths of inches when using
Prescaler =
= 10/50 = 0.2
1 (inch) x 10 (Decimal Point Value)
⎯⎯⎯⎯
600 pulses/foot x 1 foot/ 12 inches
Desired Display Units x Decimal Point Value
⎯⎯⎯⎯⎯
Number of Pulses
BACKLIGHT OPTION
Optional backlight versions of the CUB7P require an external 9 to 26 VDC
power supply. The external supply is connected between the V+ and common
terminals as shown in the drawing.
WARNING: When connecting the wiring for a backlit CUB7P
measuring an AC input voltage, the neutral of the single phase
AC signal is connected to Terminal 1 (COM), and line (hot) is
connected to Terminal 4 (LS). The DC supply for the
backlighting is connected as shown in the drawing. Three phase
AC applications require an isolation transformer.
APPLICATION - TOTAL YARDS OF MATERIAL
The management at an amusement park wants to
know how many miles (in tenths) each of their parking
lot trams travel. They know that a 24 VDC input pulse is
given for each revolution of the 6 foot in circumference
wheel. The small CUB7P100 can meet this need. There
are 5280 feet in one mile and with 6 feet per revolution;
there would be 880 revolutions or pulses in a mile. To
obtain the desired display of miles in tenths, the
CUB7P100 decimal point would be programmed for 0.0
eith the prescale value of 0.0114 (1 x 10 decimal point
value /880 pulses per mile). TO program these values,
connect wires between RST EN (Reset Enable) and
COM (Common): and between HS (Program Enable)
and COM (Common) to enable the front panel push
buttons. (See PROGRAMMING for more details)
Remove these wires after programming to prevent the
mileage from being reset.
Decimal
Point Value
Multiply
By
0 1
0.0 10
0.00 100
0.000 1000
0.0000 10000
0.00000 100000

A
94 www.redlion.net
DESCRIPTION
The CUB7P3 is an 8-digit miniature programmable counter with large 0.35
inch (8.90 mm) high digits. It has an LCD read-out available in Positive Image
Reflective, Negative Image Transmissive with yellow/green backlighting, or red
backlighting. Backlight units require an external 9 to 28 VDC power supply.
The CUB7P3 versions operate from a signal voltage of 10 to 30 V (AC 50/60
Hz or DC).
The CUB7P3 has a programmable prescaler that can be set for any value
between 0.0001 and 1.9999. The decimal point position can be set anywhere
from 0 (no D.P.) to 0.000000 or no Leading Zero Blanking. Both the prescaler
and DP selection are accessed using the front panel PGM and RESET push
buttons. See Programming for details. Note that the count, prescaler and DP
values will be lost if the battery is removed. See BATTERY INSTALLATION
for additional information.
The CUB7P counters use a CMOS LSI chip, mounted on a gold-plated
substrate, that is electrically connected by ultrasonic wire-bonding. Proven
micro-electronic assembly and manufacturing techniques provide these units
with the reliability and dependability required for industrial service.
The CUB7P series is housed in a lightweight, high impact plastic case with a
clear viewing window. The sealed front panel with the silicone rubber buttons
meets NEMA 4X/IP65 specifications for wash-down and/or dusty
environments, when properly installed.
SAFETY SUMMARY
All instructions that appear in the bulletin or on equipment, all safety related
regulations, and all local codes must be observed to ensure personal safety and
to prevent damage to either the instrument or equipment connected to it. If
equipment is used in a manner not specified by the manufacturer, the protection
provided by the equipment may be impaired.
O3 (8 Digit 0.35") LCD DISPLAY OPTIONS (Reflective, Red
Transmissive, Yellow/Green Transmissive. 9 to 28 VDC power
supply required for versions w/ LED backlighting)
OAVAILABLE VOLTAGE INPUTS (10 TO 30 VAC/DC)
OPRESCALER FROM 0.0001 TO 1.9999
OSELECTABLE DECIMAL POINTS
OREPLACEABLE INTERNAL LITHIUM BATTERY PROVIDES UP
TO 6 YEARS OF UNINTERRUPTED OPERATION (Battery Included)
OWIRE CONNECTIONS VIA SCREW CLAMP TYPE TERMINALS
OFRONT PANEL AND REMOTE RESET INPUT
ONEMA 4X/IP65 SEALED FRONT BEZEL
OBOTH FRONT PANEL PROGRAM AND RESET BUTTONS ARE
INDIVIDUALLY ENABLED
MODEL CUB7P3 - PROGRAMMABLE ELECTRONIC 8-DIGIT COUNTER
DIMENSIONS In inches (mm)
Note: Recommended minimum clearance (behind the panel) for mounting clip installation
is 2.1" (53.4) H x 5.5" (140) W.
PANEL CUT-OUT
BNL10000
CUB7P320
CUB7P310
CUB7P300
PART NUMBER
Counter; Positive Image Reflective
Counter, w/Yel-Grn Backlighting
Counter; w/Red Backlighting
Replacement 3 V Lithium BatteryBNL
VOLTAGE
INPUT
*CUB7P3
DESCRIPTIONMODEL NO.
* Battery is included with unit.
ORDERING INFORMATION
CAUTION: Risk of Danger.
Read complete instructions prior to
installation and operation of the unit.
C
C
US LISTED
US LISTED
UL
R
IND. CONT. EQ.
51EB

A
95
1-717-767-6511
SPECIFICATIONS
1. DISPLAY: 8-digit LCD, 0.35" (8.90 mm) high digits.
2. POWER SOURCE: Replaceable Internal 3.0 V lithium battery to provide up
to 6 years of continuous operation. (Battery life is dependent upon usage.
Contacts that remain closed for long periods of time reduce battery life.)
3. BACKLIGHT POWER REQUIREMENTS: 9 to 28 VDC; 35 mA. typical,
50 mA max. Above 26 VDC, derate max. operating temperature to 40°C.
Must use a NEC Class 2 or SELV rated power supply.
4. SIGNAL INPUT: (LS terminal #4) See Count Edge under Programming for
incrementing edge of input signal.
Voltage Input (CUB7P3xx): 10 V min. to 30 V max. (AC 50/60 Hz. or DC)
to Common. 30 cps max. ANY off-state leakage current may prevent
counter from activating.
5. REMOTE RESET: 15 msec min. pulse width (active low) from 3.0 V
bipolar output, an open collector transistor, or a switch contact to common.
6. ENVIRONMENTAL CONDITIONS:
Operating Temperature Range: 0 to 50°C Derate max. operating
temperature to 40°C above 26 VDC (Backlight versions).
Storage Temperature: -30 to 80°C
Operating and Storage Humidity: 85% max. relative humidity (non-
condensing) from 0°C to 50°C.
Vibration According to IEC 68-2-6: 5 to 500 Hz, in X, Y, Z direction for 1.5
hours, 5 g’s.
Shock According to IEC 68-2-27: Operational 30 g, 11 msec in 3 directions.
Altitude: Up to 2000 meters
7. CERTIFICATIONS AND COMPLIANCES:
SAFETY
UL Listed, File # E137808, UL508, CSA C22.2 No. 14-M95
LISTED by Und. Lab. Inc. to U.S. and Canadian safety standards
Type 4X Indoor Enclosure rating (Face only), UL50
IEC-61010-1, EN 61010-1: Safety requirements for electrical equipment
for measurement, control, and laboratory use, Part 1.
IP65 Enclosure rating (Face only), IEC 529
ELECTROMAGNETIC COMPATIBILITY
Notes
1. Backlit powered units require a power line filter to be installed, RLC
LFIL0000 or equivalent, so as not to impair the function of the
backlighting.
Refer to EMC Installation Guidelines for additional information.
8. CONSTRUCTION: High impact plastic case with clear viewing window.
The front panel meets NEMA 4X/IP65 requirements for indoor use when
properly installed. Installation Category I, Pollution Degree 2. Panel gasket
and mounting clip included.
9. CONNECTIONS: Wire clamping screw terminals
Wire Strip Length: 0.3" (7.5 mm).
Wire Gage: 30-14 AWG copper wire
Torque: 5 inch-pounds (0.565 N-m) max.
10. WEIGHT: 2 oz. (57 grams) [with battery]
PROGRAMMING
The CUB7P has programmable prescale values and decimal point positions.
These values are changed using the front panel push buttons. Connect wires
between RST EN (Reset Enable) and COM. (Common); and between HS
(Program Enable) and COM. (Common) to enable front panel push buttons.
Note: Upon entering the PGM mode for the first time, the Prescaler value is
set to 0.0000. Some value
between 0.0001 and 1.9999
must be entered in order for
the CUB7P to operate
properly. Previously stored
values are retained until
changed by the user.
With the front panel push buttons enabled, press the PGM button to enter the
program mode. The CUB7P display will change to the current prescale value,
with the least significant digit flashing at a 2 Hz rate. The prescale value can be
set to any value between 0.0001 and 1.9999. Press the RST button to increment
the flashing digit to the desired value. Pressing the PGM button will lock in the
value of the flashing digit and advance to the next significant digit. The most
significant digit can only be set to 0 or 1. When the entire prescale value has
been programmed, press the PGM button once to enable decimal point selection.
Any new count pulses will be accumulated using the new prescale value.
After performing the prescale selection, the display will show 0.0000.
Decimal point positions can be set for:
Press the RST button until the desired decimal point position is displayed.
Press the PGM button to select that position and return to the counter mode.
Remove the wire from the HS (Program Enable) terminal to prevent accidental
changes to the programmed values.
Note: The incrementing edge of the count signal will change when the PGM
button is pressed for the first time. To avoid incorrect display information, it is
recommended that the CUB7P be reset after making programming changes.
COUNT EDGE
Accessing program mode for the first time will complement the incrementing
edge of the count signal. See below for the incrementing edge of the count signal
for the CUB7P3:
After installing or replacing battery: Falling Edge
After entering program mode: Rising Edge
EMC INSTALLATION GUIDELINES
Although this unit is designed with a high degree of immunity to
ElectroMagnetic Interference (EMI), proper installation and wiring methods
must be followed to ensure compatibility in each application. The type of the
electrical noise, source or coupling method into the unit may be different for
various installations. In extremely high EMI environments, additional measures
may be needed. The unit becomes more immune to EMI with fewer I/O
connections. Cable length, routing and shield termination are very important and
can mean the difference between a successful or a troublesome installation.
Listed below are some EMC guidelines for successful installation in an
industrial environment.
1. Use shielded (screened) cables for all Signal and Control inputs. The shield
(screen) pigtail connection should be made as short as possible. The
connection point for the shield depends somewhat upon the application.
Listed below are the recommended methods of connecting the shield, in
order of their effectiveness.
a. Connect the shield only at the panel where the unit is mounted to earth
ground (protective earth).
b. Connect the shield to earth ground at both ends of the cable, usually when
the noise source frequency is above 1 MHz.
c. Connect the shield to common of the unit and leave the other end of the
shield unconnected and insulated from earth ground.
2. Never run Signal or Control cables in the same conduit or raceway with AC
power lines, conductors feeding motors, solenoids, SCR controls, and
heaters, etc. The cables should be run in metal conduit that is properly
grounded. This is especially useful in applications where cable runs are
long and portable two-way radios are used in close proximity or if the
installation is near a commercial radio transmitter.
3. Signal or Control cables within an enclosure should be routed as far away
as possible from contactors, control relays, transformers, and other noisy
components.
4. In extremely high EMI environments, the use of external EMI suppression
devices, such as ferrite suppression cores, is effective. Install them on
Signal and Control cables as close to the unit as possible. Loop the cable
through the core several times or use multiple cores on each cable for
additional protection. Install line filters on the power input cable to the unit
to suppress power line interference. Install them near the power entry point
of the enclosure. The following EMI suppression devices (or equivalent) are
recommended:
900 MHz ± 5 MHz
Immunity to EN 50082-2
200 Hz, 50% duty cycle
Electrostatic discharge EN 61000-4-2 Level 2; 4 Kv contact
Level 3; 8 Kv air
Electromagnetic RF fields EN 61000-4-3 Level 3; 10 V/m
80 MHz - 1 GHz
Fast transients (burst) EN 61000-4-4 Level 4; 2 Kv I/O
Level 3; 2 Kv power 1
RF conducted interference EN 61000-4-6 Level 3; 10 V/rms
150 KHz - 80 MHz
Simulation of cordless telephone ENV 50204 Level 3; 10 V/m
Emissions to EN 50081-1
RF interference EN 55022 Enclosure class B
0.0000 (Default)
0
0.00000
0.0
0.000000
0.00
00000000
0.000

A
96 www.redlion.net
Ferrite Suppression Cores for signal and control cables:
Fair-Rite # 0443167251 (RLC #FCOR0000)
TDK # ZCAT3035-1330A
Steward #28B2029-0A0
Line Filters for input power cables:
Schaffner # FN610-1/07 (RLC #LFIL0000)
Schaffner # FN670-1.8/07
Corcom #1VR3
Note: Reference manufacturer’s instructions when installing a line filter.
5. Long cable runs are more susceptible to EMI pickup than short cable runs.
Therefore, keep cable runs as short as possible.
WIRING CONNECTIONS
The electrical connections are made via screw-clamp terminals located on
the back of the unit. All conductors should meet voltage and current ratings for
each terminal. Also, cabling should conform to appropriate standards of good
installation, local codes and regulations. It is recommended that power supplied
to the unit be protected by a fuse or circuit breaker. When wiring the unit, use
the battery cover to identify the wire position with the proper function. Strip the
wire, leaving approximately 1/4" bare wire exposed (stranded wires should be
tinned with solder). Insert the wire under the screw-clamp and tighten down the
screw until the wire is clamped in tightly. Each terminal can accept up to two
#14 AWG wires.
WARNING: Lithium battery may explode if incinerated.
BATTERY INSTALLATION
1. Remove all power to the unit before removing battery cover.
2. To remove the battery cover, push upward in the direction of the arrow on
the rear cover (See drawing below), until the cover unlatches. Pull the
cover straight out from unit to fully remove.
3. Remove old battery* and replace it with an RLC battery (BNL10000).
Observe proper polarity when replacing the battery as shown in the
drawing.
4. Replace the cover. The battery cover is keyed so that it cannot be placed
upside down. The arrow on the rear of the cover should point toward the
top of the CUB7P when properly installed.
* - Dispose of properly.
WARNING: Lithium battery may explode if incinerated.
WARNING: Lithium battery may explode if incinerated. To
prevent damage to the unit, the voltage on all inputs must not
exceed 3.0 VDC with the following exceptions: V+ (all models:
28 VDC max.) and LS (voltage versions: 30 V max.).
INSTALLATION ENVIRONMENT
The unit should be installed in a location that does not exceed the maximum
operating temperature and provides good air circulation. Placing the unit near
devices that generate excessive heat should be avoided.
The bezel should be cleaned only with a soft cloth and neutral soap product.
Do NOT use solvents. Continuous exposure to direct sunlight may accelerate
the aging process of the bezel. Do not use tools of any kind (screwdrivers, pens,
pencils, etc.) to operate the push buttons of the unit.
INSTALLATION
The CUB7P meets NEMA 4X/IP65 requirements for indoor use when
properly installed. The units are intended to be mounted into an enclosed panel.
The viewing window and reset button are factory sealed for a washdown
environment. A sponge rubber gasket and mounting clip are provided for
installing the unit in the panel cut-out.
The
following
procedure assures
proper installation:
1. Cut panel opening to
specified dimensions. Remove burrs and clean around panel opening.
2. Carefully remove and discard the center section of the gasket.
3. Slide the panel gasket over the rear of the counter body to the back of the
bezel. Install CUB7P unit through the panel cut-out.
4. Insert the mounting screws onto both sides of mounting clip. Tip of screw
should NOT project from hole in mounting clip.
5. Slide the mounting clip over the rear of the unit until the clip is against the
back of the panel. The mounting clip has latching features which engage into
mating features on the CUB7P housing.
6. Note: It is necessary to hold the unit in place when sliding mounting clip into
position.
7. Alternately tighten each screw to ensure uniform gasket pressure.
Visually inspect the front panel gasket. The gasket should be compressed to
about 75 to 80% of its original thickness. If not, gradually turn mounting
screws to further compress gasket.
8. If the gasket is not adequately compressed and the mounting screws can no
longer be turned, loosen mounting screws, and check that the mounting clip
is latched as close as possible to the panel.
9. Repeat from step #5 for tightening mounting screws.
TROUBLESHOOTING
For further technical assistance, contact technical support at the appropriate
company numbers listed.

A
97
1-717-767-6511
RESET AND PROGRAM OPTIONS
Connecting a wire from the RST EN (Reset Enable) or the HS (Program
Enable) Input terminals to Common will enable the front panel Reset or
Program buttons respectively.
Pulling the “RST.” input low causes the counter to reset. The “RST.” can be
pulled low by either a mechanical switch or solid-state transistor switch. The
Switch load is 15 μA (max. voltage drop 0.5 V) when ON. The OFF-state
leakage current must be less than 2 μA.
Note: The RC protection circuit on the “RST.” Input causes a delay of
approximately 15 msec in Reset response.
L.S. INPUT; VOLTAGE VERSIONS (30 Hz MAX.)
The CUB7P3 accepts most machine control voltage signals. The input
accepts single phase AC (50/60 Hz) or DC control voltages from 10 to 30 V
at count speeds up to 30 Hz. The counter increments when voltage is applied
between the LS input and Common. Any off-state leakage current may prevent
the counter from operating properly.
PROGRAMMING EXAMPLES
SCALING A COUNTER
Example: An encoder generates 600 pulses per foot. The Desired Display is
tenths of inches. The Prescaler is determined using the formula below.
Prescaler =
Where:
Desired Display = The number of Desired
Display units (revolutions,
feet, 10ths of feet, meters,
etc.).
Number of Pulses = The number of pulses
required to achieve the
Desired Display
Decimal Point Value = The desired decimal point
placement on the display.
Example: Display tenths of inches when using
Prescaler =
= 10/50 = 0.2
1 (inch) x 10 (Decimal Point Value)
⎯⎯⎯⎯
600 pulses/foot x 1 foot/ 12 inches
Desired Display Units x Decimal Point Value
⎯⎯⎯⎯⎯
Number of Pulses
BACKLIGHT OPTION
Optional backlight versions of the CUB7P require an external 9 to 26 VDC
power supply. The external supply is connected between the V+ and common
terminals as shown in the drawing.
APPLICATION - TOTAL YARDS OF MATERIAL
The management at an amusement park wants to
know how many miles (in tenths) each of their parking
lot trams travel. They know that a 24 VDC input pulse
is given for each revolution of the 6 foot in
circumference wheel. The small CUB7P300 can meet
this need. There are 5280 feet in one mile and with 6
feet per revolution; there would be 880 revolutions or
pulses in a mile. To obtain the desired display of miles
in tenths, the CUB7P300 decimal point would be
programmed for 0.0 eith the prescale value of 0.0114 (1
x 10 decimal point value /880 pulses per mile). TO
program these values, connect wires between RST EN
(Reset Enable) and COM (Common): and between HS
(Program Enable) and COM (Common) to enable the
front panel push buttons. (See PROGRAMMING for
more details) Remove these wires after programming
to prevent the mileage from being reset.
Decimal
Point Value
Multiply
By
0 1
0.0 10
0.00 100
0.000 1000
0.0000 10000
0.00000 100000

A
98 www.redlion.net
zLCD, POSITIVE REFLECTIVE OR NEGATIVE TRANSMISSIVE
WITH YELLOW/GREEN OR RED LED BACKLIGHTING
zINTERNAL LITHIUM BATTERY PROVIDES UP TO 6 YEARS OF
UNINTERRUPTED OPERATION
zNEMA 4X/IP65 SEALED FRONT BEZEL
zFRONT PANEL RESET, REMOTE RESET, OR BOTH
zCOUNT SPEEDS UP TO 5 KHz (Model Dependent)
zCOUNT INPUT FROM 10 to 300 VAC/DC (CUB4L8W)
zWIRE CONNECTION MADE VIA SCREW CLAMP TYPE
TERMINALS
DESCRIPTION
The CUB4 offers a large display in a miniature package. There are three
CUB4 counters to choose from; the CUB4L (6-digit counter), CUB4L8 (8-digit
counter), and the CUB4L8W (8-digit counter with voltage input). You also have
a choice of three displays; reflective, red backlight or green backlight.
The backlight versions require power from an external 9–28 VDC supply. The
optional power supply (MLPS1000) is designed to be attached directly to the rear
of the CUB4 and is powered from an 85–250 VAC source. The power supply
provides 12 VDC @ 400 mA to power the backlight and sensor, if required.
The CUB4 series has a lightweight, high impact plastic case with a clear
viewing window. The sealed front panel with the silicone rubber reset button
meets NEMA 4X/IP65 specifications for wash-down and/or dusty
environments, when properly installed.
ORDERING INFORMATION
SAFETY SUMMARY
All safety related regulations, local codes and instructions that appear in the
manual or on equipment must be observed to ensure personal safety and to
prevent damage to either the instrument or equipment connected to it. If
equipment is used in a manner not specified by the manufacturer, the protection
provided by the equipment may be impaired.
SPECIFICATIONS
1. DISPLAY:
CUB4L: 6-Digit, LCD, 0.48" (12.2 mm) high digits.
CUB4L8 & CUB4L8W: 8-Digit, LCD, 0.46" (11.7 mm) high digits.
2. POWER SOURCE: Internal 3.0 V lithium battery to provide up to 6 years
of continuous operation. Battery life is dependent upon usage. Count and reset
contacts that remain closed for long periods of time will reduce battery life.
3. BACKLIGHT POWER REQUIREMENTS: 9 to 28 VDC, 35 mA typical,
50 mA max. Above 26 VDC, derate operating temperature to 50°C.
Must use the MLPS or a Class 2 or SELV rated power supply.
4. INPUTS:
All Inputs: VIL (low) = 0.5 V max.
Low Speed Input (CUB4L & CUB4L8): 30 Hz from switch contact or open
collector transistor with a 50% duty cycle.
Low Speed Input (CUB4L8W): 10 to 300 VAC/DC, 50/60 Hz, 30 cps max.
VIL = 0.5 VDC max. Unit counts on positive going edge. Will not operate
with Triac outputs.
High Speed Input (CUB4L): 5 KHz from 4.0 V to 28.0 V bipolar output
with a 50% duty cycle.
High Speed Input (CUB4L8): 5 KHz at 2.0 V (3 V max) bipolar output with
a 50% duty cycle.
Remote Reset:
CUB4L: 15 msec min. pulse width (active low) from 4.0 V to 28.0 V bipolar
output or an open collector transistor or a switch contact to common.
MODEL CUB4L, CUB4L8 & CUB4L8W - MINIATURE ELECTRONIC COUNTERS
DIMENSIONS In inches (mm)
CAUTION: Risk of Danger.
Read complete instructions prior to
installation and operation of the unit.
UL Recognized Component,
File # E179259
Note: Recommended minimum clearance (behind the panel) for mounting clip
installation is 2.15" (54.6) H x 3.00" (76.2) W.
PANEL CUT-OUT
MLPS1000
Micro Line/Sensor Power Supply
MLPS
Counter Positive Image Reflective w/V+ Terminal
Counter Positive Image Reflective w/V+ Terminal
Counter Positive Image Reflective w/V+ Terminal
CUB4LM00
CUB4L80M
CUB4L8WM
CUB4L020
CUB4L820
CUB4L8W2
Counter w/Red Backlighting
Counter w/Red Backlighting
Counter w/Red Backlighting
CUB4L
(6-digit)
CUB4L8
(8-digit)
CUB4L8W
(8-digit
w/VCM)
CUB4L010
CUB4L810
CUB4L8W1
Counter w/Yel-Grn Backlighting
Counter w/Yel-Grn Backlighting
Counter w/Yel-Grn Backlighting
For more information on Pricing, Enclosures & Panel Mount Kits refer to the RLC
Catalog or contact your local RLC distributor.
CUB4L000
CUB4L800
CUB4L8W0
Counter Positive Image Reflective
Counter Positive Image Reflective
Counter Positive Image Reflective
PART NUMBERSDESCRIPTIONMODEL NO.

A
99
1-717-767-6511
INSTALLATION ENVIRONMENT
The unit should be installed in a location that does not exceed the maximum
operating temperature and provides good air circulation. Placing the unit near
devices that generate excessive heat should be avoided.
The bezel should be cleaned only with a soft cloth and neutral soap product.
Do NOT use solvents. Continuous exposure to direct sunlight may accelerate
the aging process of the bezel.
Do not use tools of any kind (screwdrivers, pens, pencils, etc.) to operate the
keypad of the unit.
Installation
The CUB4 series of products meet NEMA 4X/IP65 requirements for indoor
use, when properly installed. The units are intended to be mounted into an
enclosed panel. The viewing window and reset button are factory sealed for a
washdown environment. A sponge rubber gasket and mounting clip are
provided for sealing the unit in the panel cut-out.
The following procedure assures proper installation:
1. Cut panel opening to specified dimensions. Remove burrs and clean around
panel opening.
2. Carefully remove the center section of the panel gasket and discard.
Slide gasket over rear of the unit to the back of the bezel.
3. Assemble nut fastener first and then mounting screw onto both sides of
mounting clip. Tip of screw should not project from hole in mounting clip.
4. Install CUB4 unit through the panel cut-out until front bezel flange contacts
the panel-mounted gasket.
5. Slide the mounting clip over the rear of the unit until the mounting clip is
against the back of the panel. The mounting clip has latching features which
engage into mating features on the CUB4 housing.
Note: It is necessary to hold the unit in place when sliding mounting clip into
position.
6. Alternately tighten each screw to ensure uniform gasket pressure. Visually
inspect the front panel gasket. The gasket should be compressed about 75 to
80% of its original thickness. (Recommended torque is 28 to 36 in-oz.) If
not, gradually turn mounting screws to further compress gasket.
7. If gasket is not adequately compressed, and mounting screws can no longer
be turned, loosen mounting screws and check that mounting clip is latched
as close as possible to panel.
Repeat procedure for tightening mounting screws.
CUB4L8 & CUB4L8W: 15 msec min. pulse width (active low) from 3.0 V
bipolar output or open collector transistor or a switch contact to common.
5. ENVIRONMENTAL CONDITIONS:
Operating Temperature: 0 to 60°C (above 50°C, derate backlight operating
voltage to 26 VDC max.).
Storage Temperature: -30 to 85°C
Operating and Storage Humidity: 85% max. (non-condensing) from 0°C to
50°C.
Vibration According to IEC 68-2-6: 5 to 500 Hz, in X, Y, Z direction for 1.5
hours, 5g’s.
Shock According to IEC 68-2-27: Operational 30 g, 11 msec in 3 directions.
Altitude: Up to 2000 meters
6. CERTIFICATIONS AND COMPLIANCES:
SAFETY
UL Recognized Component, File # E179259, UL 61010-1, CSA C22.2 No.
61010-1
Recognized to U.S. and Canadian requirements under the Component
Recognition Program of Underwriters Laboratories, Inc.
Type 4X Enclosure rating (Face only), UL50
IECEE CB Scheme Test Certificate # US/9257C/UL,
CB Scheme Test Report # E179259-V01-S02
Issued by Underwriters Laboratories, Inc.
IEC 61010-1, EN 61010-1: Safety requirements for electrical equipment
for measurement, control, and laboratory use, Part 1.
IP65 Enclosure rating (Face only), IEC 529
ELECTROMAGNETIC COMPATIBILITY
Refer to the EMC Installation Guidelines section of this bulletin for
additional information.
7. CONSTRUCTION:
This unit is rated for NEMA 4X/IP65 indoor use. Installation Category I,
Pollution Degree 2
8. WEIGHT: 3 oz. (85 grams)
EMC INSTALLATION GUIDELINES
Although Red Lion Controls Products are designed with a high degree of
immunity to Electromagnetic Interference (EMI), proper installation and wiring
methods must be followed to ensure compatibility in each application. The type
of the electrical noise, source or coupling method into a unit may be different for
various installations. Cable length, routing, and shield termination are very
important and can mean the difference between a successful or troublesome
installation. Listed are some EMI guidelines for a successful installation in an
industrial environment.
1. Use shielded (screened) cables for all Signal and Control inputs. The shield
(screen) pigtail connection should be made as short as possible. The
connection point for the shield depends somewhat upon the application.
Listed below are the recommended methods of connecting the shield, in order
of their effectiveness.
a. Connect the shield only at the panel where the unit is mounted to earth
ground (protective earth).
b. Connect the shield to earth ground at both ends of the cable, usually when
the noise source frequency is above 1 MHz.
c. Connect the shield to common of the unit and leave the other end of the
shield unconnected and insulated from earth ground.
2. Never run Signal or Control cables in the same conduit or raceway with AC
power lines, conductors feeding motors, solenoids, SCR controls, and
heaters, etc. The cables should be run in metal conduit that is properly
grounded. This is especially useful in applications where cable runs are long
and portable two-way radios are used in close proximity or if the installation
is near a commercial radio transmitter.
3. Signal or Control cables within an enclosure should be routed as far away as
possible from contactors, control relays, transformers, and other noisy
components.
4. In extremely high EMI environments, the use of external EMI suppression
devices, such as ferrite suppression cores, is effective. Install them on Signal
and Control cables as close to the unit as possible. Loop the cable through the
core several times or use multiple cores on each cable for additional protection.
Install line filters on the power input cable to the unit to suppress power line
interference. Install them near the power entry point of the enclosure. The
following EMI suppression devices (or equivalent) are recommended:
Ferrite Suppression Cores for signal and control cables:
Fair-Rite # 0443167251 (RLC #FCOR0000)
TDK # ZCAT3035-1330A
Steward #28B2029-0A0
Line Filters for input power cables:
Schaffner # FN610-1/07 (RLC #LFIL0000)
Schaffner # FN670-1.8/07
Corcom #1VR3
Note: Reference manufacturer’s instructions when installing a line filter.
5. Long cable runs are more susceptible to EMI pickup than short cable runs.
Therefore, keep cable runs as short as possible.
Immunity to EN 50082-2
Electrostatic discharge EN 61000-4-2 Level 2; 4 Kv contact
Level 3; 8 Kv air
Electromagnetic RF fields EN 61000-4-3 Level 3; 10 V/m
80 MHz - 1 GHz
Fast transients (burst) EN 61000-4-4 Level 4; 2 Kv I/O
Level 3; 2 Kv power
RF conducted interference EN 61000-4-6 Level 3; 10 V/rms
Power frequency magnetic fields EN 61000-4-8 Level 4; 30 A/m
150 KHz - 80 MHz
Simulation of cordless telephone ENV 50204 Level 3; 10 V/m
900 MHz ± 5 MHz
200 Hz, 50% duty cycle
Emissions to EN 50081-2
RF interference EN 55011 Class B

A
100 www.redlion.net
CUB4L AND CUB4L8 LOW SPEED COUNT INPUT, 30 Hz MAX.
Pulling the “L.S. CNT.” Input to Common
with a mechanical or solid-state switch
increments the counter. The low pass filter used
with a Schmidt trigger circuit debounces
mechanical switch signals. The switch load is
14 μA (max. voltage drop 0.5 V) when ON. The
OFF-state leakage current must be less than 2
μA. Motor starter contacts, tungsten contacts,
and brush-type contacts should NOT be used.
WIRING CONNECTIONS
The electrical connections are made via rear screw-clamp terminals located
on the back of the unit. When wiring the unit, use the label to identify the wire
position with the proper function. All conductors should meet voltage and
current ratings for each terminal. Also cabling should conform to appropriate
standards of good installation, local codes and regulations. It is recommended
that power supplied to the unit (AC or DC) be protected by a fuse or circuit
breaker. Strip the wire, leaving approximately 1/4" bare wire exposed (stranded
wires should be tinned with solder). Insert the wire into the screw-clamp
terminal and tighten down the screw until the wire is clamped tightly. Each
terminal can accept up to two #14 AWG wires.
Note: The Reflective CUB4 will NOT have a screw terminal installed at the V+
terminal, since it is NOT required for operation and is not internally
connected. Refer to the Ordering Information for the part number of a
reflective model that will accommodate the MLPS.
Backlight Wiring
Optional backlight versions of the CUB4 require an external 9-28 VDC
power supply. The external supply is connected between the V+ and Common
terminals.
Note: This drawing is for CUB4L and CUB4L8 reference only.
For reference of CUB4L8W, refer to Backlight Option on page 4.
Warning: Lithium battery may explode if incinerated.
Caution: All leads will be at the same line potential as the input leads.
CUB4L8W L.S. INPUT, 30 CPS MAX.
The CUB4L8W accepts most machine control voltage signals. The input
accepts AC (50/60 Hz) or DC control voltages from 10 to 300 V at count speeds
up to 30 cps. The unit counts on the positive going edge of the input signal.
WARNING: Any lead may be at hazardous live input potential.
External wiring and devices connected to the unit must be rated
the same as applied signal input voltage and be properly
isolated from Class 2 or SELV circuitry.
CUB4L HIGH SPEED COUNT INPUT, 5 KHz MAX.
The “H.S. CNT.” Input allows the CUB
Counter to operate at speeds up to 5 KHz
when driven by bi-polar outputs. Input drive
voltage must be limited to 28.0 V maximum
to avoid damage to the counter.
INPUT PULSE EXCURSION LIMITS
VIH (High) = +4.0 V min., +28.0 V max.
VIL (Low) = +0.5 V max.

A
101
1-717-767-6511
TROUBLESHOOTING
For further technical assistance, contact technical support at the appropriate company numbers listed.
RESET OPTIONS
Connecting a wire from the “RST. EN.” (Reset Enable) Input terminal to
Common will enable the front panel Reset button. When Remote Reset is
required, a wire is connected from the “REM. RST.” input terminal to
Common. Pulling this input low causes the counter to reset. The “REM. RST.”
can be pulled low by either a mechanical switch or solid-state transistor
switch. Switch load and leakage are the same as for “L.S. CNT.” Input above.
Note: The RC protection circuit on the “REM. RST.” Input causes a delay of
approximately 15 msec in Reset response.
BACKLIGHT OPTION
Optional backlight versions of the CUB4 require an external 9-28 VDC
power supply. The external supply is connected between the V+ and Common
terminals as shown in the drawing.
Red Lion Controls optional power supply (MLPS1000) is designed to be
attached directly to the rear of a CUB4 and is powered from a 85 to 250 VAC
source. The MLPS provides power for unit backlighting and a sensor.
WARNING: When connecting the wiring for a backlit CUB4L8W
measuring an AC input voltage, the neutral of the single phase AC
signal is connected to Terminal 1 (COM), and line (hot) is
connected to Terminal 5 (LS). The DC supply for the backlighting
is connected as shown in the drawing. Three phase AC applications
require an isolation transformer.
The “H.S. CNT.” Input allows the CUB Counter to operate at speeds up to
5 KHz when driven by bi-polar outputs or external circuits having an output
impedance of 3.3 KΩor less. Input drive voltage must be limited to 3 V
maximum to avoid damage to the counter. CMOS and TTL logic outputs can
be loaded with a resistor (Rl) to limit drive voltage, or a voltage divider can
be used as shown for the PNP O.C. transistor output.
INPUT PULSE EXCURSION LIMITS
VIN (High) = 2.0 V min., 3.0 V max.
VIL (Low) = ±0.5 V max.
CUB4L8 HIGH SPEED COUNT INPUT, 5 Hz MAX.
TTL OR CMOS PNP O.C. TRANSISTOR NPN O.C.
OUTPUT OR BI-POLAR OUTPUT TRANSISTOR
FIG 1 FIG 2 FIG 3
R values for
Fig 2 & 3
+V R
+5 V 2.2 K
+12 V 10 K
+18 V 16 K
+24 V 24 K

A
102 www.redlion.net
zLCD, REFLECTIVE OR GREEN/RED LED BACKLIGHTING
z0.46" (11.7 mm) HIGH DIGITS
zOPTIONAL SETPOINT OUTPUT MODULES
zOPTIONAL SERIAL COMMUNICATIONS MODULE (RS232 or RS485)
zOPERATES FROM 9 TO 28 VDC POWER SOURCE
zPROGRAMMABLE SCALING FOR COUNT AND RATE
zBI-DIRECTIONAL COUNTING, UP/DOWN CONTROL
zQUADRATURE SENSING (UP TO 4 TIMES RESOLUTION)
zBUILT-IN BATCH COUNTING CAPABILITY
zDISPLAY COLOR CHANGE CAPABILITY AT SETPOINT OUTPUT
zNEMA 4X/IP65 SEALED FRONT BEZEL
MODEL CUB5 - MINIATURE ELECTRONIC 8-DIGIT DUAL
COUNTER AND RATE INDICATOR
GENERAL DESCRIPTION
The CUB5 provides the user the ultimate in flexibility, from its complete user
programming to the optional setpoint control and communication capability.
The meter can be programmed as a single or dual counter with rate indication
capability. The display can be toggled either manually or automatically between
the selected displays.
The CUB5 display has 0.46" (11.7 mm) high digits. The LCD is available in
two versions, reflective (CUB5R000) and backlight (CUB5B000). The
backlight version is user selectable for green or red backlighting with variable
display intensity.
The counter is programmable for one of eight different count modes,
including bi-directional and quadrature. When programmed as a dual counter,
each counter has a separate scale factor and decimal points. In the counter/rate
indicator mode, each have their own scaling and decimal point read-outs in
different engineering units. The internal batch counter can be used to count
setpoint output activations.
The meter has two separate inputs which provide different functions
depending on which operating mode is selected. Input A accepts the signal for
the Count and/or Rate displays, while Input B accepts the signal for the Count
display or direction control. In the anti-coincidence mode, both inputs are
monitored simultaneously so that no counts are lost. The resulting display can
be chosen as the sum or difference of the two inputs. The Rate Indicator has
programmable low (minimum) and high (maximum) update times to provide
optimal display response at any input frequency. There is a programmable user
input that can be programmed to perform a variety of functions.
The capability of the CUB5 can be easily expanded with the addition of
option modules. Setpoint capability is field installable with the addition of the
single setpoint relay output module or the dual setpoint solid state output
module. Serial communications capability for RS232 or RS485 is added with a
serial option module.
The CUB5 can be powered from an optional Red Lion Micro-Line/Sensor
Power Supply (MLPS1000), which attaches directly to the back of a CUB5. The
MLPS1 is powered from 85 to 250 VAC and provides up to 400 mA to drive the
unit and sensors.
COUNTER
The CUB5 receives incoming pulses and multiplies them by the Count Scale
Factor to obtain the desired reading for the count display. Input A accepts the
signal for the count and Input B is used for quadrature, dual counter, anti-
coincidence counting, or up/down control counting.
RATE
The rate indicator utilizes the signal at Input A to calculate the rate value
using a time interval method (1/tau). The unit counts on the negative edge of the
input pulses. After the programmed minimum update time elapses and the next
negative edge occurs, the unit calculates the input rate based on the number of
edges that occurred during the elapsed time. The input rate is then multiplied by
the rate scaling value to calculate the rate display.
At slower rates, averaging can be accomplished by programming the rate
minimum update time for the desired response. Extensive scaling capabilities
allow practically any desired reading at very slow count rates.
SAFETY SUMMARY
All safety related regulations, local codes and instructions that appear in this
literature or on equipment must be observed to ensure personal safety and to
prevent damage to either the instrument or equipment connected to it. If
equipment is used in a manner not specified by the manufacturer, the protection
provided by the equipment may be impaired.
Do not use this meter to directly command motors, valves, or other actuators
not equipped with safeguards. To do so can be potentially harmful to persons or
equipment in the event of a fault to the meter.
CAUTION: Risk of Danger.
Read complete instructions prior to
installationand operation of the unit.
CAUTION: Risk of electric shock.
Note: Recommended minimum clearance (behind the panel) for mounting clip installation is 2.15" (54.6) H x 3.00" (76.2) W.
C
C
US LISTED
US LISTED
UL
R
IND. CONT. EQ.
51EB
DIMENSIONS In inches (mm)

A
103
1-717-767-6511
1. DISPLAY: 8 digit LCD 0.46" (11.7 mm) high digits
CUB5R000: Reflective LCD with full viewing angle
CUB5B000: Transmissive LCD with selectable red or green LED backlight,
viewing angle optimized. Display color change capability with output state
when using an output module.
2. POWER: Input voltage range is +9 to +28 VDC with short circuit and input
polarity protection. Must use an RLC model MLPS1 or a Class 2 or SELV
rated power supply.
3. COUNTER DISPLAYS:
Counter A: 8-digits, enabled in all count modes
Display Range: -9999999 to 99999999
Overflow Indication: Display flashes “Cnt OVEr”
Counter B: 7-digits, enabled in Dual Counter Mode or batch counting
Display Designator: “b” to the left side of the display
Display Range: 0 to 9999999 (positive count only)
Overflow Indication: Display flashes “bCntOVEr”
Maximum Count Rates: 50% duty cycle
Without setpoint option card: 20 KHz (all count modes)
With setpoint option card: 20 KHz for any count mode except Dual Counter
(16 KHz), Quadrature x2 (14 KHz) and Quadrature x4 (13 KHz).
4. RATE DISPLAY: 6-digits, may be enabled or disabled in any count mode
Display Designator: “R” to the left side of the display
Display Range: 0 to 999999
Over Range Display: “R OLOLOL”
Maximum Frequency: 20 KHz
Minimum Frequency: 0.01 Hz
Accuracy: ±0.01%
5. COUNT/RATE SIGNAL INPUTS (INP A and INP B):
Input A: DIP switch selectable to accept pulses from a variety of sources.
See Section 2.0 Setting the DIP Switches for Input A specifications.
Input B: Logic signals only
Trigger levels: VIL = 1.0 V max; VIH = 2.4 V min; VMAX = 28 VDC
Current sinking: Internal 10KΩpull-up resistor to +9 to 28 VDC
Filter (LO Freq.): Damping capacitor provided for switch contact bounce.
Limits input frequency to 50 Hz and input pulse widths to 10 msec min.
6. USER INPUT (USR): Programmable input. Connect to input common (INP
COMM) to activate function. Internal 10KΩpull-up resistor to +9 to 28 VDC.
Threshold Levels: VIL = 1.0 V max; VIH = 2.4 V min; VMAX = 28 VDC
Response Time: 5 msec typ.; 50 msec debounce (activation and release)
7. MEMORY: Nonvolatile E2PROM memory retains all programming
parameters and count values when power is removed.
8. CONNECTIONS: Wire clamping screw terminals
Wire Strip Length: 0.3" (7.5 mm)
Wire Gage: 30-14 AWG copper wire
Torque: 5 inch-lbs (0.565 N-m) max.
9. CONSTRUCTION: This unit is rated for NEMA 4X/IP65 requirements for
indoor use. Installation Category I, Pollution Degree 2. High impact plastic
case with clear viewing window. Panel gasket and mounting clip included.
10. ENVIRONMENTAL CONDITIONS:
Operating Temperature Range for CUB5R000: -35 to 75°C
Operating Temperature Range for CUB5B000 depends on display color
and intensity level as per below:
Storage Temperature: -35 to 85°C
Operating and Storage Humidity: 0 to 85% max. relative humidity (non-
condensing)
Vibration According to IEC 68-2-6: Operational 5 to 500 Hz, in X, Y, Z
direction for 1.5 hours, 5 g’s.
Shock According to IEC 68-2-27: Operational 40 g, 11 msec in 3 directions.
Altitude: Up to 2000 meters
11. CERTIFICATIONS AND COMPLIANCES:
SAFETY
UL Recognized Component, File #E179259, UL61010A-1, CSA 22.2 No. 61010-1
Recognized to U.S. and Canadian requirements under the Component
Recognition Program of Underwriters Laboratories, Inc.
UL Listed, File # E137808, UL508, CSA C22.2 No. 14-M95
LISTED by Und. Lab. Inc. to U.S. and Canadian safety standards
Type 4X Indoor Enclosure rating (Face only), UL50
IECEE CB Scheme Test Certificate #US/9257C/UL
CB Scheme Test Report #E179259-V01-S02
Issued by Underwriters Laboratories, Inc.
IEC 61010-1, EN 61010-1: Safety requirements for electrical equipment
for measurement, control, and laboratory use, Part 1.
IP65 Enclosure rating (Face only), IEC 529
ELECTROMAGNETIC COMPATIBILITY
Emissions and Immunity to EN 61326: Electrical Equipment for
Measurement, Control and Laboratory use.
Notes:
1. Criterion A: Normal operation within specified limits.
Refer to EMC Installation Guidelines for additional information.
12. WEIGHT: 3.2 oz (100 g)
GENERAL METER SPECIFICATIONS
ORDERING INFORMATION
TYPE MODEL NO. DESCRIPTION PART NUMBER
CUB5 CUB5R CUB5R000
CUB5B CUB5B000
Optional Plug-in Cards
CUB5SNK
CUB5RLY
CUB5USB
CUB5COM
USB Serial Communication Card
RS232 Serial Communications Card
RS485 Serial Communications Card
Dual Sinking Open Collector Output card
Single Relay Option Card
CUB5USB0
CUB5COM2
CUB5COM1
CUB5SNK0
CUB5RLY0
Accessories
CBLUSB
SFCRD
CBLPRO
CBPRO
MLPS1
USB Programming Cable
Crimson 2 PC Configuration Software for Windows 98, ME, 2000, XP 1
Programming Cable RS232 (RJ11-DB9)
Programming Cable RS485 (RJ11-DB9)
Micro-Line Power Supply, 85 to 250 VAC
CBLUSB0
SFCRD200
CBLPROG0
CBPRO007
MLPS1000
Dual Counter & Rate Indicator with Reflective Display
Dual Counter & Rate Indicator with Backlight Display
MODEL
NO. DISPLAY COLOR
INPUT CURRENT
@ 9 VDC WITHOUT
CUB5RLY0
CUB5R000 --- 10 mA 30 mA
CUB5B000 Red (max intensity) 85 mA 115 mA
CUB5B000 Green (max intensity) 95 mA 125 mA
TEMPERATURE
1 & 2 -35 to 75°C
3-35 to 70°C
4-35 to 60°C
5-35 to 50°C
1 & 2 -35 to 75°C
3-35 to 65°C
5
4
-35 to 35°C
-35 to 50°C
INTENSITY LEVEL
Class AEN 55011Emissions
Emissions:
30 A/m
3 V/rms
Criterion A
Criterion A
EN 61000-4-8
EN 61000-4-6RF conducted interference
1 kV L-L,
Criterion AEN 61000-4-5Surge
1 kV signal
2 kV power
Criterion AEN 61000-4-4Fast transients (burst)
2 kV L&N-E power
10 V/m
Criterion AEN 61000-4-3Electromagnetic RF fields
8 kV air discharge
4 kV contact discharge
Criterion AEN 61000-4-2Electrostatic discharge
Immunity to Industrial Locations:
Power frequency magnetic fields
Green Display
Red Display
INPUT CURRENT
@ 9 VDC WITH
CUB5RLY0
1 Crimson 2 software is a free download from http://www.redlion.net/

A
104 www.redlion.net
1.0 INSTALLING THE METER
INSTALLATION
The meter meets NEMA 4X/IP65 requirements when properly installed. The
unit is intended to be mounted into an enclosed panel. Prepare the panel cutout
to the dimensions shown. Remove the panel latch
from the unit. Slide the panel gasket over the rear
of the unit to the back of the bezel. The unit
should be installed fully assembled. Insert
the unit into the panel cutout.
While holding the unit in place, push the panel latch over the rear of the unit
so that the tabs of the panel latch engage in the slots on the case. The panel latch
should be engaged in the farthest forward slot possible. To achieve a proper seal,
tighten the latch screws evenly until the unit is snug in the panel (Torque to
approx. 28 to 36 in-oz [0.202 to 0.26 N-m]). Do not over-tighten the screws.
INSTALLATION ENVIRONMENT
The unit should be installed in a location that does not exceed the operating
temperature and provides good air circulation. Placing the unit near devices that
generate excessive heat should be avoided.
The bezel should only be cleaned with a soft cloth and neutral soap product.
Do NOT use solvents. Continuous exposure to direct sunlight may accelerate the
aging process of the bezel.
Do not use tools of any kind (screwdrivers, pens, pencils, etc.) to operate the
keypad of the unit.
2.0 SETTING THE DIP SWITCHES
SETTING THE INPUT DIP SWITCHES
The meter has four DIP switches for Input A and Input B that must be set
before applying power.
SWITCH 1
LOGIC: Input A trigger levels VIL = 1.25 V max.;
VIH = 2.75 V min.; VMAX = 28 VDC
MAG: 200 mV peak input sensitivity; 100 mV
hysteresis; maximum input voltage: ±40 V peak
(28 Vrms); Must also have SRC switch ON.
(Not recommended with counting applications.)
SWITCH 2
SNK.: Adds internal 7.8 KΩpull-up resistor to +9 to
28 VDC, IMAX = 3.8 mA.
SRC.: Adds internal 3.9 KΩpull-down resistor,
7.2 mA max. @ 28 VDC max.
SWITCHES 3 and 4
HI Frequency: Removes damping capacitor and allows max. frequency.
LO Frequency: Adds a damping capacitor for switch contact bounce. Limits
input frequency to 50 Hz and input pulse widths to 10 msec.
To access the switches, remove the rear cover of the meter as described
below. A bank of 4 switches is located in the upper right hand corner. After
setting the switches, install any optional plug-in cards before replacing the rear
cover (see next section).
Warning: Exposed line voltage exists on the circuit boards. Remove
all power to the meter and load circuits before accessing inside of
the meter.
REMOVING THE REAR COVER
To remove the rear cover, locate the cover locking tab below the 2nd and 3rd
input terminals. To release the tab, insert a small, flat blade screwdriver between
the tab and the plastic wall below the terminals. Inserting the screwdriver will
provide enough pressure to release the tab locks. To replace the cover, align the
cover with the input terminals and press down until the cover snaps into place.
4
3
2
1
ON
Input B LO Freq.
Input A LO Freq.
Input A SRC.
Input A MAG.
HI Freq.
HI Freq.
SNK.
Logic
Factory Setting
OPTIONAL PLUG-IN CARDS
ADDING OPTION CARDS
The CUB5 meters can be fitted with optional output cards and/or serial
communications cards. The details for the plug-in cards can be reviewed in the
specification section below. The plug-in cards, that are sold separately, can be
installed initially or at a later date.
WARNING: Disconnect all power to the unit before
installing Plug-in card.
SINGLE RELAY OUTPUT CARD (One setpoint only)
Type: Single FORM-C relay
Isolation To Sensor & User Input Commons: 1400 Vrms for 1 min.
Working Voltage: 150 Vrms
Contact Rating: 1 amp @ 30 VDC resistive; 0.3 amp @ 125 VAC resistive
Life Expectancy: 100,000 minimum operations
Response Time:
Turn On Time: 4 msec max.
Turn Off Time: 4 msec max.
DUAL SINKING OUTPUT CARD (One or two setpoints)
Type: Non-isolated switched DC, N Channel open drain MOSFET
Current Rating: 100 mA max.
VDS ON: 0.7 V @ 100 mA
VDS MAX: 30 VDC
Offstate Leakage Current: 0.5 mA max.
RS485 SERIAL COMMUNICATIONS CARD
Type: RS485 multi-point balanced interface (non-isolated)
Baud Rate: 300 to 38.4k
Data Format: 7/8 bits; odd, even, or no parity
Bus Address: 0 to 99; max 32 meters per line
Transmit Delay: Selectable, 2 msec min. or 50 msec min.
RS232 SERIAL COMMUNICATIONS CARD
Type: RS232 half duplex (non-isolated)
Baud Rate: 300 to 38.4k
Data Format: 7/8 bits; odd, even, or no parity

A
105
1-717-767-6511
WIRING OVERVIEW
Electrical connections are made via screw-clamp terminals located on the
back of the meter. All conductors should conform to the meter’s voltage and
current ratings. All cabling should conform to appropriate standards of good
installation, local codes and regulations. It is recommended that the power
supplied to the meter (DC or AC) be protected by a fuse or circuit breaker.
Strip the wire, leaving approximately 0.3" (7.5 mm) bare lead exposed
(stranded wires should be tinned with solder.) Insert the lead under the correct
screw-clamp terminal and tighten until the wire is secure. (Pull wire to verify
tightness.) Each terminal can accept up to one #14 AWG (2.55 mm) wire, two
#18 AWG (1.02 mm), or four #20 AWG (0.61 mm).
EMC INSTALLATION GUIDELINES
Although this meter is designed with a high degree of immunity to Electro-
Magnetic Interference (EMI), proper installation and wiring methods must be
followed to ensure compatibility in each application. The type of the electrical
noise, source or coupling method into the meter may be different for various
installations. The meter becomes more immune to EMI with fewer I/O
connections. Cable length, routing, and shield termination are very important
and can mean the difference between a successful or troublesome installation.
Listed below are some EMC guidelines for successful installation in an
industrial environment.
1. The meter should be mounted in a metal enclosure, which is properly
connected to protective earth.
2. Use shielded (screened) cables for all Signal and Control inputs. The shield
(screen) pigtail connection should be made as short as possible. The
connection point for the shield depends somewhat upon the application.
Listed below are the recommended methods of connecting the shield, in order
of their effectiveness.
a. Connect the shield only at the panel where the unit is mounted to earth
ground (protective earth).
b. Connect the shield to earth ground at both ends of the cable, usually when
the noise source frequency is above 1 MHz.
c. Connect the shield to common of the meter and leave the other end of the
shield unconnected and insulated from earth ground.
3. Never run Signal or Control cables in the same conduit or raceway with AC
power lines, conductors feeding motors, solenoids, SCR controls, and
heaters, etc. The cables should be ran in metal conduit that is properly
grounded. This is especially useful in applications where cable runs are long
and portable two-way radios are used in close proximity or if the installation
is near a commercial radio transmitter.
4. Signal or Control cables within an enclosure should be routed as far as possible
from contactors, control relays, transformers, and other noisy components.
5. In extremely high EMI environments, the use of external EMI suppression
devices, such as ferrite suppression cores, is effective. Install them on Signal
and Control cables as close to the unit as possible. Loop the cable through the
core several times or use multiple cores on each cable for additional protection.
Install line filters on the power input cable to the unit to suppress power line
interference. Install them near the power entry point of the enclosure. The
following EMI suppression devices (or equivalent) are recommended:
Ferrite Suppression Cores for signal and control cables:
Fair-Rite # 0443167251 (RLC# FCOR0000)
TDK # ZCAT3035-1330A
Steward # 28B2029-0A0
Line Filters for input power cables:
Schaffner # FN610-1/07 (RLC# LFIL0000)
Schaffner # FN670-1.8/07
Corcom # 1 VR3
Note: Reference manufacturer’s instructions when installing a line filter.
6. Long cable runs are more susceptible to EMI pickup than short cable runs.
Therefore, keep cable runs as short as possible.
7. Switching of inductive loads produces high EMI. Use of snubbers across
inductive loads suppresses EMI.
Snubber: RLC# SNUB0000.
4.0 WIRING THE METER
4.1 POWER WIRING
DC Power
+9 to +28 VDC: +VDC
Power Common: -VDC
4.2 USER INPUT WIRING
Sinking Logic
INP COMM
USR
The user input of the meter is
internally pulled up to +9 to +28 V
with 10 K resistance. The input is
active when it is pulled low (<1 .0 V).
Connect external switching device between the
User Input terminal and Input Common.
}
The Plug-in cards are separately purchased option cards that perform specific
functions. The cards plug into the main circuit board of the meter. After
installing the cards, replace the rear cover before wiring the meter.
CAUTION: The Plug-in cards and main circuit board contain static
sensitive components. Before handling the cards, discharge
static charges from your body by touching a grounded bare
metal object. Ideally, handle the cards at a static controlled
clean workstation. Also, only handle the cards by the edges.
Dirt, oil or other contaminants that may contact the cards can
adversely affect circuit operation.
REPLACING THE REAR COVER
To replace the rear cover, align the cover with the input terminals and press
down until the cover snaps into place.
3.0 INSTALLING PLUG-INCARDS
Comms Card Setpoint Card
Locking Tab

A
106 www.redlion.net
4.3 INPUT WIRING
CAUTION: Power common (PWR COMMON) is NOT isolated from input common (INP COMM). In order to preserve the safety of the meter
application, the power common must be suitably isolated from hazardous live earth referenced voltage; or input common must be at protective earth
ground potential. If not, hazardous voltage may be present at the Signal or User Inputs and input common terminals. Appropriate considerations must
then be given to the potential of the input common with respect to earth ground; and the common of the plug-in cards with respect to input common.
AC Inputs From Tach Generators, Etc.
Input A
Two Wire Proximity, Current Source
Input A
Magnetic Pickup
Input A
Current Sourcing Output
Input A
Interfacing With TTL
Input A
Current Sinking Output
Input A
Switch or Isolated Transistor; Current Sink
Input A
Switch or Isolated Transistor; Current Source
Input A
Switch position is application dependent.
Current Sink Output; Quad/Direction
Shaded areas not recommended for counting applications.
4.5 SERIAL COMMUNICATION WIRING
SERIAL COMMUNICATIONS PLUG-IN CARD RJ11 CONNECTOR PIN OUTS
4.4 SETPOINT (OUTPUT) WIRING
SINGLE SETPOINT RELAY PLUG-IN CARD ELECTRICAL CONNECTIONS
DUAL SETPOINT N-FET OPEN DRAIN PLUG-IN CARD ELECTRICAL CONNECTIONS
Note: Output Common is not isolated from DC Power Common. Load must
be wired between OSNK terminal and V+ of the load supply.

A
107
1-717-767-6511
5.0 REVIEWING THE FRONT BUTTONS AND DISPLAY
PROGRAMMING MODE ENTRY (SEL KEY)
It is recommended all programming changes be made off line, or before
installation. The meter normally operates in the Display Mode. No parameters
can be programmed in this mode. The Programming Mode is entered by
pressing and holding the SEL key. If it is not accessible then it is locked by
either a security code, or a hardware lock.
MODULE ENTRY (SEL & RST KEYS)
The Programming Menu is organized into separate modules. These modules
group together parameters that are related in function. The display will alternate
between Pro and the present module. The RST key is used to select the desired
module. The displayed module is entered by pressing the SEL key.
MODULE MENU (SEL KEY)
Each module has a separate module menu (which is shown at the start of each
module discussion). The SEL key is pressed to advance to a particular parameter
to be changed, without changing the programming of preceding parameters.
After completing a module, the display will return to Pro NO. Programming may
continue by accessing additional modules.
SELECTION / VALUE ENTRY
For each parameter, the display alternates between the present parameter and
the selections/value for that parameter. The RST key is used to move through the
selections/values for that parameter. Pressing the SEL key, stores and activates the
displayed selection/value. This also advances the meter to the next parameter.
For numeric values, press the RST key to access the value. The right hand
most digit will begin to flash. Pressing the RST key again increments the digit
by one or the user can hold the RST key and the digit will automatically scroll.
The SEL key will advance to the next digit. Pressing and holding the SEL key
will enter the value and move to the next parameter.
PROGRAMMING MODE EXIT (SEL KEY)
The Programming Mode is exited by pressing the SEL key with Pro NO
displayed. This will commit any stored parameter changes to memory and
return the meter to the Display Mode. (If power loss occurs before returning to
the Display Mode, verify recent parameter changes.)
PROGRAMMING TIPS
It is recommended to start with Module 1 for counting or Module 2 for rate.
When programming is complete, it is recommended to record the parameter
programming and lock out parameter programming with the user input or
programming security code.
FACTORY SETTINGS
Factory settings may be completely restored in Module 3. This is useful when
encountering programming problems.
ALTERNATING SELECTION DISPLAY
In the explanation of the modules, the following dual display with arrows will
appear. This is used to illustrate the display alternating between the parameter
on top and the parameter’s factory setting on the bottom. In most cases,
selections and values for the parameter will be listed on the right.
6.0 PROGRAMMING THE METER
OVERVIEW
PROGRAMMING MENU
Indicates Program Mode Alternating Display
Factory Settings are shown.
Parameter
Selection/Value
KEY DISPLAY MODE OPERATION ENTERING PROGRAM MODE PROGRAMMING MODE OPERATION
SEL Index display through enabled values Press and hold for 2 seconds to activate Store selected parameter and index to next parameter
RST Resets count display(s) and/or outputs Advances through the program menu/
Increments selected parameter value or selection
OPERATING MODE DISPLAY DESIGNATORS
“R” - To the left of the display is the rate value.
- Counter A has no designator.
“b” - To the left of the display is the Counter B value (dual count or batch).
“1” and “2” - Indicates setpoint 1 and 2 output status.
Pressing the SEL button toggles the meter through the selected displays. If display scroll is enabled, the display will toggle automatically every four seconds between
the rate and count values.
ª
«
Cnt ud
INP A-b

A
108 www.redlion.net 108
6.1 MODULE 1 - INPUT SETUP PARAMETERS (1-INPUt)
COUNTER A DECIMAL POSITION
COUNTER A SCALE FACTOR
The number of input counts is multiplied by the scale factor to obtain the
desired process value. A scale factor of 1.0000 will result in the display of the
actual number of input counts. (Details on scaling calculations are explained at
the end of this section.)*
This selects the decimal point position for Counter A. The selection will also
affect Counter A scale factor calculations.
00.0001 to 99.9999
COUNTER RESET AT POWER-UP
yES
NO
COUNT MODE
Select the count mode that corresponds with your application. The input
actions are shown in the boxes below. For simple counting applications, it is
recommended to use Count with Direction for the count mode. Simply leave the
direction input unconnected.
COUNTER B DECIMAL POSITION
This selects the decimal point position for Counter B. The selection will also
affect Counter B scale factor calculations.
COUNTER B SCALE FACTOR
The number of input or batch counts is multiplied by the scale factor to
obtain the desired process value. A scale factor of 1.0000 will result in the
display of the actual number of input or batch counts. (Details on scaling
calculations are explained at the end of this section.)*
00.0001 to 99.9999
Count bNO
both A-bCount A
Cnt ud qUAd 1 Add Add
dUAL Cnt
RAtE Cnt
qUAd 4
qUAd 2 Add Sub
0.000000.0000.0
0.00000.0000.000000.0000.0
0.00000.000
ª
«
Cnt ud
INP A-b
ª
«
0
CntA dP
ª
«
01.0000
CmtA ScF
COUNTER A COUNT LOAD VALUE
Counter A resets to this value if Reset to Count Load action is selected.
-9999999 to 99999999
ª
«
00000500
CmtA Ld
COUNTER B BATCH COUNT ENABLE
The Counter B batch count function internally counts the number of output
activations of the selected setpoint(s). The count source for the batch counter
can be SP1, SP2 or both. Batch counting is available in all count modes except
Dual Counter, which uses an external input signal for Counter B. This
parameter only appears if a Setpoint Output option card is installed.
ª
«
NO
Cmtb bAt
ª
«
0
Cntb dP
ª
«
01.0000
ª
«
NO
RSt P-UP
Shaded area selections only apply when Counter B is enabled (Dual Counter
mode or batch counter).
Counter A SubtractCounter A Add
Counter A AddCounter A Add
Quad ACount A
Quad ACount A
Quad ACount A
Counter B AddCounter A Add
Counter A AddRate only
Counter A DirectionCounter A
INPUT B ACTIONINPUT A ACTION
Add Sub 2 Input Add/Subtract
Add Add 2 Input Add/Add
qUAd 4 Quadrature x4
qUAd 2 Quadrature x2
qUAd 1 Quadrature x1
dUAL Cnt Dual Counter
RAtE Cnt Rate/Counter
Cnt ud Count with Direction
DISPLAY MODE
The selected counter(s) will reset at each meter power-up.
* For value entry instructions, refer to selection/value entry in the Programming
The Meter section.
Note: The Rate indicator signal is derived from Input A in all count modes.
Cntb ScF
COUNTER A RESET ACTION
When Counter A is reset, it returns to Zero or Counter A Count Load value.
This reset action applies to all Counter A resets, except a setpoint generated
Counter Auto Reset programmed in Module 4.
ª
«
to 2Ero
CmtA rSt to 2Ero to CtLd
COUNTER A COUNT DIRECTION
Reverse (rEV) switches the normal Counter A count direction shown in the
Count Mode parameter chart.
ª
«
NOr
CmtA dir NOr rEV
NO SP2
SP1 SP1-2
PARAMETER MENU

A
109
1-717-767-6511
6.2 MODULE 2 - RATE SETUP PARAMETERS (2-rAtE)
PARAMETER MENU
RATE ENABLE
Module 2 is the programming for the rate parameters. For maximum input
frequency, Rate Enable should be set to NO when not in use. When set to NO, the
remaining rate parameters are not accessible. The rate value is shown with an
annunciator of “R” in the Display Mode.
This selects the decimal point position for the rate display and any setpoint
value assigned to rate. This parameter does not affect rate scaling calculations.
RATE DECIMAL POINT
0.000000.0000.0
0.00000.000
RATE SCALING INPUT VALUE
RATE SCALING DISPLAY VALUE
Enter the desired Rate Display Value for the Scaling Point.*
Enter the corresponding Rate Input Value for the Scaling Point.*
0 to 999999
0.1 to 99999.9
*For value entry instructions, refer to selection/value entry in the Programming
The Meter section.
USER INPUT ASSIGNMENT
The User Input Assignment is only active when Counter B is enabled and the
User Input performs a Reset, Inhibit or Store function on one or both counters.
USER INPUT FUNCTION
MODEDISPLAY
No Function
NO
DESCRIPTION
User Input disabled.
Program Mode Lock-out
Pro Loc
rESEt
Inhibit Inhibit counting for the selected counter(s).
Store
StorE
Store and Reset
Stor-rSt
Display Select *
d-SELECt
d-LEVEL Increase intensity one level for each
activation. (backlight version only)
rESEt-12
rESEt-2
rESEt-1
Prnt-r5t
Print
d-COLOr
Advance once for each activation
both A-bCount bCount A
See Programming Mode Access chart.
(Module 3)
Setpoint 1 and 2 Reset *
Setpoint 2 Reset *
Setpoint 1 Reset *
Print and Reset *
Print Request
Backlight Color *
Edge triggered reset of the selected
counter(s) after storing the count.
ª
«
NO
USEr INP
ª
«
Count A
USEr ASN
ª
«
YES
RAtE Enb
ª
«
001000
RAtE dSP
ª
«
O
RAtE dP ª
«
01000.0
RAtE INP
YESNO
Reset Setpoint 1 and 2 outputs
Reset Setpoint 2 output
Reset Setpoint 1 output
Same as Print Request followed by a
momentary reset of the selected counter(s).
Change backlight color with each activation
(backlight version only)
Inhibit
Maintained Reset
Freeze display of selected counter(s) while
allowing counts to accumulate internally.
Display Intensity Level *
Serial transmit of the active parameters
selected in the Print Options (Module 5)
SCALING FOR COUNT INDICATION
The CUB5’s scale factor is factory set to 1, to provide one count on the
display for each pulse that is input to the unit. In many applications, there will
not be a one-to-one correspondence between input pulses and display units.
Therefore, it is necessary for the CUB5 to scale or multiply the input pulses by
a scale factor to achieve the desired display units (feet, meters, gallons, etc.)
The Count Scale Factor Value can range from 00.0001 to 99.9999. It is
important to note that the precision of a counter application cannot be improved
by using a scale factor greater than one. To accomplish greater precision, more
pulse information must be generated per measuring unit. The following formula
is used to calculate the scale factor.
Scale Factor = Desired Display Unitsx Decimal Point Position
Number of Pulses
WHERE:
Desired Display Units: Count display units acquired after pulses that occurred.
Number of Pulses: Number of pulses required to achieve the desired
display units.
Decimal Point Position:
0=1
0.0 = 10
0.00 = 100
0.000 = 1000
0.0000 = 10000
0.00000 = 100000
EXAMPLE: The counter display is used to indicate the total number of feet
used in a process. It is necessary to know the number of pulses for the desired
units to be displayed. The decimal point is selected to show the resolution in
hundredths.
Scale Factor = Desired Display Unitsx Decimal Point Position
Number of Pulses
Given that 128 pulses are equal to 1 foot, display total feet with a one-
hundredth resolution.
Scale Factor = 1.00 x 100
128
Scale Factor = 0.007812 x 100
Scale Factor = 0.7812
Level active reset of the selected counter(s).
Note: * indicates Edge Triggered function. Other functions are Level Active
(maintained)

A
110 www.redlion.net
INPUT FREQUENCY CALCULATION
The meter determines the input frequency by summing the number of falling
edges received during a sample period of time. The sample period begins on the
first falling edge. At this falling edge, the meter starts accumulating time
towards Low Update and High Update values. Also, the meter starts
accumulating the number of falling edges. When the time reaches the Low
Update Time value, the meter looks for one more falling edge to end the sample
period. If a falling edge occurs (before the High Update Time value is reached),
the Rate display will update to the new value and the next sample period will
start on the same edge. If the High Update Time value is reached (without
receiving a falling edge after reaching Low Update Time), then the sample
period will end but the Rate display will be forced to zero. The High Update
Time value must be greater than the Low Update Time value. Both values must
be greater than 0.0. The input frequency calculated during the sample period, is
then shown as a Rate value determined by the scaling calculation.
The Low Update Time is the minimum amount of time between display
updates for the rate display. Values of 0.1 and 0.2 seconds will update the
display correctly but may cause the display to appear unsteady.
RATE LOW UPDATE TIME
0.1 to 99.9 seconds
The High Update Time is the maximum amount of time before the rate
display is forced to zero. (For more explanation, refer to Rate Value
Calculation.) The High Update Time must be higher than the Low Update Time
and higher than the desired slowest readable speed (one divided by pulses per
second). The factory setting of 2.0, will force the display to zero for speeds
below 0.5 Hz or a pulse every 2 seconds.
RATE HIGH UPDATE TIME
0.2 to 99.9 seconds
ª
«
01.0
LO-Udt
ª
«
02.0
HI-Udt
SCALING FOR RATE INDICATION
To scale the rate, enter a Scaling Display value with a corresponding Scaling
Input value. These values are internally plotted to a display value of 0 and input
value of 0.0 Hz. A linear relationship is formed between these points to yield a
rate display value that corresponds to the incoming input signal rate. The meter
is capable of showing a rate display value for any linear process.
SCALING CALCULATION
If a display value versus input signal (in pulses per second) is known, then
those values can be entered into Scaling Display (RAtE dSP) and Scaling Input
(RAtE INP). No further calculations are needed.
If only the number of pulses per ‘single’ unit (i.e. # of pulses per foot) is
known, then it can be entered as the Scaling Input value and the Scaling Display
value will be entered as the following:
NOTES:
1. If # of pulse per unit is less than 10, then multiply both Input and Display
values by 10.
2. If # of pulse per unit is less than 1, then multiply both Input and Display
values by 100.
3. If the Display value is raised or lowered, then Input value must be raised
or lowered by the same proportion (i.e. Display value for per hour is
entered by a third less (1200) then Input value is a third less of # of pulses
per unit). The same is true if the Input value is raised or lowered, then
Display value must be raised or lowered by the same proportion.
4. Both values must be greater than 0.0.
EXAMPLE:
1. With 15.1 pulses per foot, show feet per minute in tenths. Scaling Display
= 60.0 Scaling Input = 15.1.
2. With 0.25 pulses per gallon, show whole gallons per hour. (To have greater
accuracy, multiply both Input and Display values by 10.) Scaling Display
= 36000 Scaling Input = 2.5.
RATE PER DISPLAY (RAtE dSP)INPUT (RAtE INP)
Second 1 # of pulses per unit
Minute 60 # of pulses per unit
Hour 3600 # of pulses per unit

A
111
1-717-767-6511
The Security Code determines the programming mode and the accessibility
of programming parameters. This code can be used along with the Program
Mode Lock-out (Pro Loc) in the User Input Function parameter (Module 1).
Two programming modes are available. Full Programming mode allows all
parameters to be viewed and modified. Quick Programming mode permits only
the setpoint output time-out and counter load values (when applicable) to be
modified, but allows direct access to these values without having to enter Full
Programming mode.
Programming a Security Code other than 0, requires this code to be entered
at the Pro CodE prompt in order to access Full Programming mode. Depending
on the code value, Quick Programming may be accessible before the Pro CodE
prompt appears (see chart).
PROGRAMMING SECURITY CODE
The yES selection will return the meter to the factory default settings. The
meter will display rESEt and then return to Pro, at which time all settings have
been changed.
LOAD FACTORY DEFAULT SETTINGS
0 to 999
yESNO
ª
«
000
Pro CodE
ª
«
MO
FACt SEt
* Entering Code 222 allows access regardless of security code.
The yES selection allows the SEL button to toggle through the enabled
displays.
FRONT PANEL DISPLAY SELECT ENABLE (SEL)
The yES selection allows the RST button to reset the selected counter(s). The
shaded selections are only active when Counter B is enabled (Dual Count mode
or batch counter).
FRONT PANEL COUNTER RESET ENABLE (RST)
The yES selection allows the display to automatically scroll through the
enabled displays. Each display is shown for 4 seconds.
DISPLAY SCROLL ENABLE
NOyES
Count b
both A-b
dSPLAy
yES
NO
NO
Count A
NOyES
ª
«
yES
SEL Enb
ª
«
YES
RSt Enb
ª
«
NO
d-ScroLL
Enter the desired display color, red or green. This parameter is active for
backlight units only.
DISPLAY COLOR (BACKLIGHT UNIT ONLY)
6rnrEd
ª
«
rEd
d-COLOr
Enter the desired Display Intensity Level (1-5). The display will actively dim
or brighten as levels are changed. This parameter is active for backlight units only.
DISPLAY INTENSITY LEVEL (BACKLIGHT UNIT ONLY)
ª
«
5
d-LEVEL 1 to 5
Select YES to momentarily display the meter software version before advancing
to the next parameter. The software version is also displayed at power-up.
SOFTWARE VERSION DISPLAY
ª
«
NO
CodE UEr
6.3 MODULE 3 - DISPLAY AND FRONT PANEL KEY
PARAMETERS (3-dSPLAY)
PARAMETER MENU
NO yES
Immediate AccessFull Programming0-999Not Active
With correct code entry
at Pro CodE prompt *
Pro CodE prompt
100-999
Pro Loc
No Access
Quick
Programming
1-99
Active
No Access
Programming
Lock
0
With correct code entry
at Pro CodE prompt *
Pro CodE prompt
100-999
After Quick Programming
with correct code entry
at Pro CodE prompt *
Quick
Programming
1-99
______
not Pro Loc
Immediate AccessFull Programming0
FULL PROGRAMMING
MODE ACCESS
MODE WHEN “SEL”
KEY IS PRESSED
SECURITY
CODE
USER INPUT
STATE
USER INPUT
FUNCTION

A
112 www.redlion.net
6.4 MODULE 4 - SETPOINT OUTPUT PARAMETERS (4-SEtPt)
PARAMETER MENU
The Setpoint Output Parameters are only active when an optional Setpoint
Output Module is installed in the meter. Some parameters in the menu will not
appear depending on the Setpoint Assignment and Setpoint Output Action. The
Setpoint Parameter Availability chart below illustrates this.
PARAMETER DESCRIPTION BOUNDARY
bOUNd
LATCH
LAtCH
RATE ASSIGNMENT
TIMED OUT
t-OUt
BOUNDARY
bOUNd
LATCH
LAtCH
Yes No No Yes No No
SPn VAL Setpoint Value Yes Yes Yes Yes Yes Yes
SPn OUt Setpoint Output Logic Yes Yes Yes Yes Yes Ye s
SPn LIt Setpoint Annunciator Yes Yes Yes Yes Yes Yes
SPn P-UP Setpoint Output Power-up State No No Yes No No Yes
SPn tYPE Setpoint Boundary Type No Yes No Yes Yes Yes
SPn StbY Standby Operation (Low acting only) No Yes No Yes Yes Yes
SPn AUtO Counter Auto Reset Yes No Yes No No No
SP1 OFF2 SP1 Output Off at SP2 (SP1 only) Yes No Yes No No No
SP2 OFF1 SP2 Output Off at SP1 (SP2 only) Yes No Yes No No No
SPn rSt Output Reset with Manual Reset Yes No Yes Yes No Yes
SPn ChC Change Display Color w/ Output State Yes Ye s Yes Yes Yes Yes
Setpoint Output Time-out Value
TIMED OUT
t-OUt
COUNTER ASSIGNMENT (A or B) *
SPn tOUt
* BOUNDARY Setpoint Action not applicable for Counter B Assignment
Select the Setpoint Output to be programmed, starting with Setpoint 1. The
"n" in the following parameters reflects the chosen Setpoint number. After
Setpoint 1 is completely programmed, the display returns to SPt SEL. Repeat
steps for Setpoint 2 if both Setpoints are used in the application.
Select NO to exit the Setpoint programming module. The number of Setpoints
available is dependent on the Setpoint option module installed.
SETPOINT SELECT
SP2SP1NO
ª
«
NO
SPt SEL
SETPOINT 2 ENABLE (SP2 Only)
Select YES to enable Setpoint 2 and access the setup parameters. If NO is
selected, the unit returns to SPt SEL and Setpoint 2 is disabled.
YESNO
ª
«
NO
SP2 Enb
SETPOINT ASSIGNMENT
SETPOINT PARAMETER AVAILABILITY
Select the display to which the Setpoint is assigned.
ª
«
Count A
SPn ASN
SETPOINT OUTPUT ACTION
The parameter selects the action of the Setpoint Output as described in the
chart. Boundary output action is not applicable for Counter B assignment.
ª
«
LAtCH
SPn ACt
Count A Count b rAtE
LAtCH t-OUt bOUNd
SPT ACTION DESCRIPTION OUTPUT ACTIVATES OUTPUT DEACTIVATES
LAtCH Latched Output Mode When Count =
Setpoint
At Manual Reset
(if SPn rSt=YES)
t-OUt Timed Output Mode When Count =
Setpoint
After Setpoint
Output Time-Out
bOUNd Boundary Mode
(Low Acting Type)
Boundary Mode
(High Acting Type)
When Count ≤
Setpoint
When Count ≥
Setpoint
When Count
>Setpoint
When Count
< Setpoint

A
113
1-717-767-6511
SAVE will restore the output to the same state it was at before the meter was
powered down. ON will activate the output at power up. OFF will deactivate the
output at power up.
SETPOINT OUTPUT POWER-UP STATE
SETPOINT VALUE
Enter the desired Setpoint value. To enter a negative setpoint value,
increment digit 8 to display a “-” sign (Counter A only).
This parameter automatically resets the counter to which the setpoint is
assigned (SPn ASN) each time the setpoint value is reached. The automatic reset
can occur at output start, or at output end if the Setpoint Output Action is
programmed for timed output mode. The Reset-to-Count Load selections
(“CtLd-”) only apply to Counter A assignment. This reset may be different from
the Counter A Reset Action selected in Module 1.
COUNTER AUTO RESET
Selecting YES causes the Setpoint output to deactivate (reset) when the
Setpoint Assigned Counter is reset. The counter reset can occur by the RST
button, User Input, Counter Reset at Power-up or a serial Reset Counter
command.
This output reset will not occur when the Assigned Counter is reset by a
Setpoint generated Counter Auto Reset.
SETPOINT OUTPUT RESET WITH MANUAL RESET
This parameter enables the backlight CUB5 to switch the backlight color when
the output state changes. This parameter is only active for the backlight version.
CHANGE DISPLAY COLOR WITH OUTPUT STATE
Count A:
0to 999999
Rate:
0to 9999999
Count B:
ª
«
00000100
SPn VAL
SETPOINT OUTPUT TIME-OUT
This parameter is only active if the Setpoint Action is set to time out (t-OUt).
Enter the value in seconds that the Setpoint output will be active, once the
Setpoint Value is reached.
ª
«
001.00
SPn tOUt
SETPOINT OUTPUT LOGIC
Normal (NOr) turns the output “on” when activated and “off” when
deactivated. Reverse (rEV) turns the output “off” when activated and “on” when
deactivated.
ª
«
NOr
SPn OUt
SETPOINT ANNUNCIATOR
Normal (NOr) displays the setpoint annunciator when the corresponding
output is “on”. Reverse (rEV) displays the setpoint annunciator when the output
is “off”.
ª
«
NOr
SPn LIt
ª
«
OFF
SPn P-UP
ª
«
NO
SPn AUtO
ª
«
YES
SPn rSt
ª
«
NO
SPn ChC
CtLd-Str@2Ero-StrNO
CtLd-End2Ero-End
NOYES
SAVEONOFF
SETPOINT BOUNDARY TYPE
High Acting Boundary Type activates the output when the assigned display
value (SPn ASN) equals or exceeds the Setpoint value. Low Acting activates the
output when the assigned display value is less than or equal to the Setpoint.
ª
«
HI-ACt
SPn tYPE
SETPOINT STANDBY OPERATION
This parameter only applies to Low Acting Boundary Type setpoints. Select
YES to disable a Low Acting Setpoint at power-up, until the assigned display
value crosses into the output “off” area. Once in the output “off” area, the
Setpoint will then function per the description for Low Acting Boundary Type.
ª
«
NO
SPn StbY
SETPOINT 1 OUTPUT OFF AT SETPOINT 2 (SP1 Only)
This parameter will deactivate Setpoint 1 output at the Start or End of
Setpoint 2 output (O1 off at O2). The “-End” setting only applies if Setpoint 2
Output Action is programmed for timed output.
ª
«
NO
SP1 OFF2
SETPOINT 2 OUTPUT OFF AT SETPOINT 1 (SP2 Only)
This parameter will deactivate Setpoint 2 output at the Start or End of
Setpoint 1 output (O2 off at O1). The “-End” setting only applies if Setpoint 1
Output Action is programmed for timed output.
ª
«
NO
SP2 OFF1
0.01 to 599.99 seconds
NOr rEV
NOr rEV
HI-ACt LO-ACt
NO YES
SELECTION ACTION
NO No Auto Reset.
2Ero-Str Reset to Zero at the start of output activation.
CtLd-Str Reset to Count Load value at the start of output activation.
2Ero-End Reset to Zero at the end of output activation (timed out only).
CtLd-End
NO Out2-Str Out2-End
Out1-EndOut1-StrNO
YESNO
Reset to Count Load value at the end of output activation
(timed out only).
-9999999 to 99999999

A
114 www.redlion.net
6.5 MODULE 5 - SERIAL COMMUNICATIONS PARAMETERS (5-SEriAL)
PARAMETER MENU
DATA BIT
ABBREVIATED PRINTING
PRINT OPTIONS
PARITY BIT
METER ADDRESS
The Serial Communications Parameters are only accessible when an
optional RS232 or RS485 serial communications module is installed in the
meter.
This section replaces the bulletin shipped with the RS232 and RS485 serial
communications plug-in cards. Discard the separate bulletin when using those
serial plug-in cards with the CUB5B and CUB5R.
BAUD RATE
Set the baud rate to match that of other serial communications equipment.
Normally, the baud rate is set to the highest value that all of the serial
communications equipment is capable of transmitting and receiving.
Select either 7- or 8-bit data word length. Set the word length to match the
other serial communications equipment on the serial link.
This parameter only appears when the Data Bit parameter is set to a 7-bit
data word length. Set the parity bit to match that of the other serial equipment
on the serial link. The meter ignores parity when receiving data and sets the
parity bit for outgoing data. If parity is set to NO, an additional stop bit is used
to force the frame size to 10 bits.
Enter the serial node address. With a single unit, an address is not needed
and a value of zero can be used (RS232 applications). Otherwise, with multiple
bussed units, a unique address number must be assigned to each meter. The
node address applies specifically to RS485 applications.
This parameter determines the formatting of data transmitted from the meter
in response to a Transmit Value command or a Block Print Request. Select NO
for a full print transmission, consisting of the meter address, mnemonics, and
parameter data. Select YES for abbreviated print transmissions, consisting of the
parameter data only. This setting is applied to all the parameters selected in the
PRINT OPTIONS. (Note: If the meter address is 0, the address will not be sent
during a full transmission.)
This parameter selects the meter values transmitted in response to a Print
Request. A print request is also referred to as a block print because more than
one parameter can be sent to a printer or computer as a block.
Selecting YES displays a sublist for choosing the meter parameters to appear
in the print block. All active parameters entered as YES in the sublist will be
transmitted during a block print. Parameters entered as NO will not be sent.
The “Print All” (Prnt ALL) option selects all meter values for transmitting
(YES), without having to individually select each parameter in the sublist.
Note: Inactive parameters will not be sent regardless of the print option
setting. For example, Counter B or Scale Factor B will only be sent if Counter
B is enabled (Dual Counter mode or batch count). Likewise, the Setpoint
value(s) will not be sent unless an optional setpoint card is installed in the
meter.
ª
«
9600
bAUd
ª
«
7-bit
dAtA
ª
«
Odd
PAritY
ª
«
00
Addr
ª
«
NO
Abbr
ª
«
NO
Prnt OPt
0 to 99
9600
4800
38400
19200
2400600
1200300
8-bit7-bit
EVENOdd
NO
YESNO
YESNO
Scale Factor B
Scale Factor A
FACTORY
SETTING
DESCRIPTION
CLD
SP2
SP1
NO
NO
NO
Setpoint 2
Setpoint 1
CntA Ld
SP2
sSP1
SFB
NOCntb ScF
SFA
NOCntA ScF
RTE
NO
Rate Value
rAtE
CTB
NO
Counter B
Count b
CTA
YES
Counter A
Count A
MNEMONICDISPLAY
Counter A Count Load

A
115
1-717-767-6511
Sending Serial Commands and Data
When sending commands to the meter, a string containing at least one
command character must be constructed. A command string consists of a
command character, a value identifier, numerical data (if writing data to the
meter) followed by a command terminator character, * or $.
Command Chart
Register Identification Chart
ID Value Description MNEMONIC Transmit Details (T and V)
ACounter A CTA 8 digit positive/7 digit negative
(with minus sign)
BCounter B CTB 7 digit, positive only
CRate RTE 6 digit, positive only
DScale Factor A SFA 6 digit, positive only
EScale Factor B SFB 6 digit, positive only
H
G
F
CLD
SP2
SP1
8 digit positive/7 digit negative
(with minus sign)
per setpoint Assignment, same
as Counter or Rate
per setpoint Assignment, same
as Counter or Rate
T, V, R
T, V, R
T
T, V
T, V,
T, V
T, V, R
T, V, R
Command String Construction
The command string must be constructed in a specific sequence. The meter
does not respond with an error message to illegal commands. The following
procedure details construction of a command string:
1. The first 2 or 3 characters consist of the Node Address Specifier (N) followed
by a 1 or 2 character node address number. The node address number of the
meter is programmable. If the node address is 0, this command and the node
address itself may be omitted. This is the only command that may be used in
conjunction with other commands.
2. After the optional address specifier, the next character is the command
character.
3. The next character is the register ID. This identifies the register that the
command affects. The P command does not require a register ID character. It
prints all the active selections chosen in the Print Options menu parameter.
4. If constructing a value change command (writing data), the numeric data is
sent next.
5. All command strings must be terminated with the string termination characters
* or $. The meter does not begin processing the command string until this
character is received. See Command Response Time section for differences in
meter response time when using the * and $ terminating characters.
Command String Examples:
1. Node address = 17, Write 350 to the Setpoint 1 value
String: N17VF350*
2. Node address = 5, Read Counter A, response time of 50 msec min
String: N5TA*
3. Node address = 0, Reset Setpoint 1 output
String: RF*
4. Node address = 31, Request a Block Print Output, response time of 2 msec min
String: N31P$
Transmitting Data to the Meter
Numeric data sent to the meter must be limited to transmit details listed in the
Register Identification Chart. Leading zeros are ignored. Negative numbers
must have a minus sign. The meter ignores any decimal point and conforms the
number to the scaled resolution. (For example: The meter’s scaled decimal point
position is set for 0.0 and 25 is written to a register. The value of the register is
now 2.5. In this case, write a value of 250 to equal 25.0).
Note: Since the meter does not issue a reply to value change commands, follow
with a transmit value command for readback verification.
Receiving Data From The Meter
Data is transmitted from the meter in response to either a transmit command
(T), a block print request command (P) or a User Input print request. The
response from the meter is either a full field transmission or an abbreviated
transmission, depending on the selection chosen in Module 5.
Full Field Transmission
* These characters only appear in the last line of a block print.
The first two characters transmitted are the meter address. If the address
assigned is 0, two spaces are substituted. A space follows the meter address field.
The next three characters are the register mnemonic, as shown in the Register
Identification Chart.
The numeric data is transmitted next. The numeric field (bytes 7 to 18) is 12
characters long. When a requested counter or rate value exceeds the meter’s
display limits, an * (used as an overflow character) replaces a space in byte 7.
Byte 8 is always a space.
The remaining ten positions of this field consist of a minus sign (for negative
values), a floating decimal point (if applicable), and eight positions for the
requested value. The data within bytes 9 to 18 is right-aligned with leading
spaces for any unfilled positions.
The end of the response string is terminated with a <CR> and <LF>. After the
last line of a block print, an extra <SP>, <CR> and <LF> are added to provide
separation between the print blocks.
Abbreviated Transmission
* These characters only appear in the last line of a block print.
The abbreviated response suppresses the node address and register ID,
leaving only the numeric part of the response.
Meter Response Examples:
1. Node address = 17, full field response, Counter A = 875
17 CTA 875 <CR><LF>
2. Node address = 0, full field response, Setpoint 1 = -250.5
SP1 -250.5<CR><LF>
3. Node address = 0, abbreviated response, Setpoint 1 = 250, last line of block
print
250<CR><LF><SP><CR><LF>
Byte Description
1, 2 2 byte Node Address field [00-99]
3<SP> (Space)
4-6 3 byte Register Mnemonic field
7-18
19 <CR> (carriage return)
20 <LF> (line feed)
21 <SP>* (Space)
22 <CR>* (carriage return)
23 <LF>* (line feed)
Byte Description
1-12 12 byte data field, 10 bytes for number, one byte for sign,
one byte for decimal point
13 <CR> (carriage return)
14 <LF> (line feed)
15 <SP>* (Space)
16 <CR>* (carriage return)
17 <LF>* (line feed)
12 byte data field; 10 bytes for number, one byte for sign, one byte for
decimal point
Applicable
Commands
Initiates a block print output. Registers in the
print block are selected in Print Options.
Block Print Request
(read)
P
Reset a count value or setpoint output. Must
be followed by a register ID character
ResetR
Write to register of the meter. Must be
followed by a register ID character and
numeric data.
Value Change (write)V
Read a register from the meter. Must be
followed by a register ID character.
Transmit Value (read)T
Address a specific meter. Must be followed by
one or two digit node address. Not required
when node address = 0.
Node (meter)
Address Specifier
N
NotesDescriptionCommand
Setpoint 1
(Reset Output 1)
Counter A Count
Load Value
Setpoint 2
(Reset Output 2)

A
116 www.redlion.net
Command Response Time
The meter can only receive data or transmit data at any one time (half-duplex
operation). During RS232 transmissions, the meter ignores commands while
transmitting data, but instead uses RXD as a busy signal. When sending
commands and data to the meter, a delay must be imposed before sending
another command. This allows enough time for the meter to process the
command and prepare for the next command.
At the start of the time interval t1, the computer program prints or writes the
string to the com port, thus initiating a transmission. During t1, the command
characters are under transmission and at the end of this period, the command
terminating character (* or $) is received by the meter. The time duration of t1
is dependent on the number of characters and baud rate of the channel.
t1= (10 times the # of characters) / baud rate
At the start of time interval t2, the meter starts the interpretation of the
command and when complete, performs the command function. This time
interval t2varies. If no response from the meter is expected, the meter is ready
to accept another command.
If the meter is to reply with data, the time interval t2is controlled by the use
of the command terminating character. The ‘*’ terminating character results in
a response time of 50 msec. minimum. This allows sufficient time for the
release of the sending driver on the RS485 bus. Terminating the command line
with ‘$’ results in a response time (t2) of 2 msec. minimum. The faster response
time of this terminating character requires that sending drivers release within 2
msec. after the terminating character is received.
At the beginning of time interval t3, the meter responds with the first
character of the reply. As with t1, the time duration of t3is dependent on the
number of characters and baud rate of the channel. At the end of t3, the meter is
ready to receive the next command.
t3= (10 times the # of characters) / baud rate
The maximum serial throughput of the meter is limited to the sum of the
times t1, t2and t3.
Timing Diagram Figure
Communication Format
Data is transferred from the meter through a serial communication channel.
In serial communications, the voltage is switched between a high and low level
at a predetermined rate (baud rate) using ASCII encoding. The receiving device
reads the voltage levels at the same intervals and then translates the switched
levels back to a character. The voltage level conventions depend on the interface
standard. The table lists the voltage levels for each standard.
Data is transmitted one byte at a time with a variable idle period between
characters (0 to ∞). Each ASCII character is “framed” with a beginning start bit,
an optional parity bit and one or more ending stop bits. The data format and
baud rate must match that of other equipment in order for communication to
take place. The figures list the data formats employed by the meter.
Start Bit and Data Bits
Data transmission always begins with the start bit. The start bit signals the
receiving device to prepare for reception of data. One bit period later, the least
significant bit of the ASCII encoded character is transmitted, followed by the
remaining data bits. The receiving device then reads each bit position as they are
transmitted.
Parity Bit
After the data bits, the parity bit is sent. The transmitter sets the parity bit to
a zero or a one, so that the total number of ones contained in the transmission
(including the parity bit) is either even or odd. This bit is used by the receiver
to detect errors that may occur to an odd number of bits in the transmission.
However, a single parity bit cannot detect errors that may occur to an even
number of bits. Given this limitation, the parity bit is often ignored by the
receiving device. The CUB5 meter ignores the parity bit of incoming data and
sets the parity bit to odd, even or none (mark parity) for outgoing data.
Stop Bit
The last character transmitted is the stop bit. The stop bit provides a single bit
period pause to allow the receiver to prepare to re-synchronize to the start of a
new transmission (start bit of next byte). The receiver then continuously looks
for the occurrence of the start bit. If 7 data bits and no parity is selected, then 2
stop bits are sent from the meter.
Character Frame Figure
LOGIC RS232* RS485*INTERFACE STATE
1TXD,RXD; -3 to -15 V a-b < -200 mVmark (idle)
0TXD,RXD; +3 to +15 V a-b > +200 mVspace (active)
* Voltage levels at the Receiver

A
117
1-717-767-6511
CUB5 PROGRAMMING QUICK OVERVIEW
Press and hold SEL key to
enter Programming Mode.

A
118 www.redlion.net
zAVAILABLE IN 6 OR 8-DIGIT VERSIONS
z6-DIGIT, 0.56" (14.2 mm) / 8-DIGIT, 0.4" (10.1 mm) HIGH LED
DISPLAYS
zACCEPTS INPUT COUNT RATES UP TO 25 KHZ
zBI-DIRECTIONAL COUNTING
zREMOTE RESET CAPABILTY
zDISPLAY STORE
zCOUNT INHIBIT
zPROGRAMMABLE SCALE FACTOR
zNEMA 4X/IP65 SEALED FRONT BEZEL
GENERAL DESCRIPTION
The PAX®Lite Counter, Model PAXLC, is a versatile totalizing counter that
can be adapted to a wide variety of counting, measuring, and positioning
readout applications.
The unit features a programmable scale factor, front panel and remote reset,
store, inhibit, and a count rate of 25 KHz, while offering an economical solution
to any totalizing need.
The PAXLC accepts digital inputs from a variety of sources including switch
contacts, NPN-OC and TTL outputs, as well as most standard Red Lion sensors.
The input can be scaled to display any desired unit of measure by simply using
the programmable scale factor. The meter can accept bi-directional and uni-
directional signals.
The meter is programmed through the front panel buttons and the use of DIP
switches. The Down Arrow Key will also function as a front panel display reset.
Once the front panel programming is complete, the buttons can be disabled by
a DIP switch setting.
The meter has been specifically designed for harsh industrial environments.
With a NEMA 4X/IP65 sealed bezel and extensive testing to meet CE
requirements, the meter provides a tough yet reliable application solution.
SAFETY SUMMARY
All safety related regulations, local codes and instructions that appear in the
literature or on equipment must be observed to ensure personal safety and to
prevent damage to either the instrument or equipment connected to it. If
equipment is used in a manner not specified by the manufacturer, the protection
provided by the equipment may be impaired.
MODEL PAXLC - PAX®LITE COUNTER
CAUTION: Risk of Danger.
Read complete instructions prior to
installation and operation of the unit.
CAUTION: Risk of electric shock.
DIMENSIONS In inches (mm) Note: Recommended minimum clearance (behind the panel) for mounting clip installation is
2.1" (53.4) H x 5" (127) W.
C
C
US LISTED
US LISTED
UL
R
IND. CONT. EQ.
51EB

A
119
1-717-767-6511
ORDERING INFORMATION
Meter Part Numbers
Ordering Information . . . . . . . . . . . . . . . . . . . 2
General Meter Specifications. . . . . . . . . . . . . 3
Installing the Meter . . . . . . . . . . . . . . . . . . . . 3
Setting the Switches . . . . . . . . . . . . . . . . . . . 4
Wiring the Meter . . . . . . . . . . . . . . . . . . . . . . 4
Reviewing the Front Buttons and Display . . . 6
Scaling the Meter . . . . . . . . . . . . . . . . . . . . . 6
Programming the Meter . . . . . . . . . . . . . . . . 7
TABLE OF CONTENTS
PAXL 0
0
C6 - 6 Digit Counter
C8 - 8 Digit Counter

A
120 www.redlion.net
GENERAL METER SPECIFICATIONS
1. DISPLAY: 6-digit, 0.56" (14.2 mm) or 8-digit, 0.4" (10.1 mm)
7-segment LED
Display Range: 6-digit, -99999 to 999999 or 8-digit, -9999999 to 99999999
Display Overflow indicated by flashing dot to the right of digit 1
Decimal points are programmed by front panel keys
2. POWER:
AC Power: 115/230 VAC, switch selectable. Allowable power line variation
±10%, 50/60 Hz, 6 VA.
Isolation: 2300 Vrms for 1 min. to input and DC Out/In.
DC Power: 10 to 16 VDC @ 0.1 A max.
3. SENSOR POWER: 9 to 17.5 VDC @ 100 mA max.
4. KEYPAD: 3 programming keys, the T(Down Arrow) key can also function
as the front panel reset button
5. COUNT INPUT: (DIP switch selectable)
Accepts pulses from a variety of sources including switch contacts, NPN-
OC and TTL Outputs, as well as most standard Red Lion® sensors
Logic State: Active Low
Input trigger levels VIL = 1.5 V max.; VIH = 3.75 V min.
Current Sinking: Internal 7.8 KΩpull-up to +12 VDC, I max = 1.9 mA
Current Sourcing: Internal 3.9 KΩpull-down, 8 mA max. @ 30 VDC max.
Filter: Damping capacitor provided for switch contact bounce. Limits input
frequency to 50 Hz and input pulse widths to 10 msec. minimum.
6. MAXIMUM COUNT RATE: 25 KHz max.
7. CONTROL INPUTS:
Count Up/Down Control, Remote Reset, Inhibit, and Store
Max. Continuous Input: 30 VDC
Isolation To Sensor Input Commons: Not isolated
Logic State: Active Low, 22 KΩpull-up to +12 V
Active: VIN < 0.9 VDC
Inactive: VIN > 3.6 VDC
Response Time:
Up/Down and Inhibit: 25 μsec max.
Reset and Store: 10 msec. max.
8. MEMORY: Nonvolatile E2PROM retains all programmable parameters and
count values.
9. ENVIRONMENTAL CONDITIONS:
Operating Temperature Range: 0 to 60°C
Storage Temperature Range: -40 to 60°C
Operating and Storage Humidity: 0 to 85% max. relative humidity
non-condensing
Altitude: Up to 2000 meters
10. CERTIFICATIONS AND COMPLIANCES:
SAFETY
UL Recognized Component, File # E179259, UL61010A-1, CSA C22.2
No. 61010-1
Recognized to U.S. and Canadian requirements under the Component
Recognition Program of Underwriters Laboratories, Inc.
UL Listed, File # E137808, UL508, CSA C22.2 No. 14-M95
LISTED by Und. Lab. Inc. to U.S. and Canadian safety standards
Type 4X Enclosure rating (Face only), UL50
IECEE CB Scheme Test Certificate # US/8843A/UL
CB Scheme Test Report # 04ME11209-20041018
Issued by Underwriters Laboratories, Inc.
IEC 61010-1, EN 61010-1: Safety requirements for electrical
equipment for measurement, control, and laboratory use, Part 1.
IP65 Enclosure rating (Face only), IEC 529
IP20 Enclosure rating (Rear of unit), IEC 529
ELECTROMAGNETIC COMPATIBILITY
Emissions and Immunity to EN 61326: Electrical Equipment for
Measurement, Control and Laboratory use.
Notes:
1. Criterion A: Normal operation within specified limits.
2. EMI filter placed on the DC power supply, when DC powered: Corcom
#1VB3 or Schaffner #FN610-1/07 (RLC #LFIL0000).
11. CONNECTIONS: High compression cage-clamp terminal block
Wire Strip Length: 0.3" (7.5 mm)
Wire Gage: 30-14 AWG copper wire
Torque: 4.5 inch-lbs (0.51 N-m) max.
12. CONSTRUCTION: This unit is rated for NEMA 4X/IP65 outdoor use.
IP20 Touch safe. Installation Category II, Pollution Degree 2. One piece
bezel/case. Flame resistant. Synthetic rubber keypad. Panel gasket and
mounting clip included.
13. WEIGHT: 12 oz. (340 g)
1.0 INSTALLING THE METER
Installation
The PAX meets NEMA 4X/IP65 requirements when properly installed. The
unit is intended to be mounted into an enclosed panel. Prepare the panel cutout
to the dimensions shown. Remove the panel latch from the unit. Slide the panel
gasket over the rear of the unit to the back of the bezel. The unit should be
installed fully assembled. Insert the unit into the panel cutout.
While holding the unit in place, push
the panel latch over the rear of the
unit so that the tabs of the panel
latch engage in the slots on the case. The panel latch should be engaged in the
farthest forward slot possible. To achieve a proper seal, tighten the latch screws
evenly until the unit is snug in the panel (Torque to approximately 7 in-lbs [79N-
cm]). Do not over-tighten the screws.
Installation Environment
The unit should be installed in a location that does not exceed the maximum
operating temperature and provides good air circulation. Placing the unit near
devices that generate excessive heat should be avoided.
The bezel should be cleaned only with a soft cloth and neutral soap product.
Do NOT use solvents. Continuous exposure to direct sunlight may accelerate the
aging process of the bezel.
Do not use tools of any kind (screwdrivers, pens, pencils, etc.) to operate the
keypad of the unit.
PANEL CUT-OUT
Class BEN 55011Emissions
Emissions:
0.5 cycle
Criterion AEN 61000-4-11Voltage dip/interruptions
30 A/m
Criterion AEN 61000-4-8Power frequency magnetic fields
3 V/rms
Criterion AEN 61000-4-6RF conducted interference
1 kV signal
1 kV L-L,
Criterion A 2
EN 61000-4-5Surge
2 kV signal
2 kV power
Criterion A 2
EN 61000-4-4Fast transients (burst)
2 kV L&N-E power
10 V/m
Criterion AEN 61000-4-3Electromagnetic RF fields
8 kV air discharge
4 kV contact discharge
Criterion AEN 61000-4-2Electrostatic discharge
Immunity to Industrial Locations:

A
121
1-717-767-6511
3.0 WIRING THE METER
The meter has switches that must be checked and/or changed prior to applying
power. To access the power switch, remove the meter base from the case by firmly
squeezing and pulling back on the side rear finger tabs. This should lower the latch
below the case slot (which is located just in front of the finger tabs). It is
recommended to release the latch on one side, then start the other side latch.
Power Selection Switch
Caution: Insure the AC power selection switch is set for the proper
voltage before powering-up the meter. The meter is shipped from
the factory in the 230 VAC position.
Setup DIP Switches
A DIP switch is at the rear of the meter. It is used
to set up the input, enable/disable programming and
front panel reset functions. For the correct input
setup, refer to 3.3 Wiring the Meter.
Switch 1
SNK.: Adds internal 7.8 KΩpull-up resistor to +12 VDC, IMAX = 1.9 mA
Switch 2
SRC: Adds internal 3.9 KΩ pull-down resistor, 8 mA max. @ 30 VDC max.
Switch 3
HI Frequency: Removes damping capacitor and allows max. frequency.
LO Frequency: Limits input frequency to 50 Hz and input pulse widths to
10 msec.
Switch 4
LOGIC: Input trigger levels VIL = 1.5 V max; VIH = 3.75 V max.
MAG: Not used for count applications.
Switch 5
Enable Programming: Enables programming through the front panel
buttons.
Disables Programming: Disables the front panel buttons from any
programming changes.
Switch 6
Enable Reset: Enables the front panel reset (down arrow key).
Disable Reset: Disables the front panel reset key. Note: The remote reset
terminal is not disabled by this switch.
2.0 SETTING THE SWITCHES
WIRING OVERVIEW
Electrical connections are made via screw-clamp terminals located on the
back of the meter. All conductors should conform to the meter’s voltage and
current ratings. All cabling should conform to appropriate standards of good
installation, local codes and regulations. It is recommended that the power
supplied to the meter (DC or AC) be protected by a fuse or circuit breaker.
When wiring the meter, compare the numbers embossed on the back of the
meter case against those shown in wiring drawings for proper wire position. Strip
the wire, leaving approximately 0.3" (7.5 mm) bare lead exposed (stranded wires
should be tinned with solder.) Insert the lead under the correct screw-clamp
terminal and tighten until the wire is secure. (Pull wire to verify tightness.)
EMC INSTALLATION GUIDELINES
Although this meter is designed with a high degree of immunity to Electro-
Magnetic Interference (EMI), proper installation and wiring methods must be
followed to ensure compatibility in each application. The type of the electrical
noise, source or coupling method into the meter may be different for various
installations. The meter becomes more immune to EMI with fewer I/O
connections. Cable length, routing, and shield termination are very important
and can mean the difference between a successful or troublesome installation.
Listed below are some EMC guidelines for successful installation in an
industrial environment.
1. The meter should be mounted in a metal enclosure, which is properly
connected to protective earth.
2. Use shielded (screened) cables for all Signal and Control inputs. The shield
(screen) pigtail connection should be made as short as possible. The
connection point for the shield depends somewhat upon the application.
Listed below are the recommended methods of connecting the shield, in order
of their effectiveness.
a. Connect the shield only at the panel where the unit is mounted to earth
ground (protective earth).
b. Connect the shield to earth ground at both ends of the cable, usually when
the noise source frequency is above 1 MHz.
c. Connect the shield to common of the meter and leave the other end of the
shield unconnected and insulated from earth ground.
3. Never run Signal or Control cables in the same conduit or raceway with AC
power lines, conductors feeding motors, solenoids, SCR controls, and
heaters, etc. The cables should be run in metal conduit that is properly
grounded. This is especially useful in applications where cable runs are long
and portable two-way radios are used in close proximity or if the installation
is near a commercial radio transmitter.
4. Signal or Control cables within an enclosure should be routed as far as possible
from contactors, control relays, transformers, and other noisy components.
5. In extremely high EMI environments, the use of external EMI suppression
devices, such as ferrite suppression cores, is effective. Install them on Signal
and Control cables as close to the unit as possible. Loop the cable through the
core several times or use multiple cores on each cable for additional protection.
Install line filters on the power input cable to the unit to suppress power line
interference. Install them near the power entry point of the enclosure. The
following EMI suppression devices (or equivalent) are recommended:
Ferrite Suppression Cores for signal and control cables:
Fair-Rite # 0443167251 (RLC# FCOR0000)
TDK # ZCAT3035-1330A
Steward # 28B2029-0A0
Line Filters for input power cables:
Schaffner # FN610-1/07 (RLC# LFIL0000)
Schaffner # FN670-1.8/07
Corcom # 1 VR3
Note: Reference manufacturer’s instructions when installing a line filter.
6. Long cable runs are more susceptible to EMI pickup than short cable runs.
Therefore, keep cable runs as short as possible.
7. Switching of inductive loads produces high EMI. Use of snubbers across
inductive loads suppresses EMI.
Snubber: RLC# SNUB0000.
REAR TERMINALS
FRONT DISPLAY
115
INPUT SET-UP
DIP SWITCHES
230
POWER
SELECTION
SWITCH
6
5
4
3
21
ON
DIS PGM
DIS RST
MAG
LO Freq.
SRC.
SNK.
EN PGM
EN RST
LOGIC
HI Freq.
Not Active
Not Active
Factory Setting

A
122 www.redlion.net
3.1 POWER WIRING
3.2 CONTROL INPUT WIRING
The PAXLC provides a number of control inputs, including Store, Reset,
Inhibit and Up/Down control. These inputs are active low (connected to
common), so the external switching device should be connected between the
control input and common terminals.
Up/Down - This input determines the direction of the count. Unconnected,
the meter will count up. When input is pulled low, the meter will count down.
Reset - When this input is pulled low, the meter will reset to zero. If the input
remains low or connected to common, the meter will be held in the reset mode,
and not able to count.
Inhibit - When low, this input will prevent the meter from counting. If the
input remains low or connected to the common, the meter will not be able to
count.
Store - A low will stop the display from updating. It will freeze the display
as long as the input is held low. Once released the display will update to the
current count display.
AC Power
Terminal 1: VAC
Terminal 2: VAC
DC Power
Terminal 3: +VDC
Terminal 4: COMM
3.3 INPUT WIRING
Current Sourcing Output
Interfacing With TTL
Two Wire Proximity, Current Source Current Sinking Output
Switch or Isolated Transistor; Current Sink Switch or Isolated Transistor; Current Source
Emitter Follower; Current Source
*Switch position is application dependent.

A
123
1-717-767-6511
4.0 REVIEWING THE FRONT BUTTONS AND DISPLAY
5.0 SCALING THE METER
In many industrial applications, a meter is required to totalize the output of an
operation or event. The pulses from a sensor are received by the PAXLC, and
then totalized on the display. In many cases the incoming pulses do not represent
the desired display readout. For those applications, a scale factor can be entered
into the meter, scaling the pulses to obtain the desired readout. The following
formula will help provide the scaling values to achieve the desired readout.
SF = DR
EPU
WHERE:
SF = Scale Factor
DR = Desired Readout* (Single unit of measure, i.e. foot, gallon, etc.)
EPU = Existing Pulses per Unit (Number of pulses per single unit of measure,
i.e. foot, gallons, etc.)
*For applications requiring a decimal point, select and program the
appropriate decimal point. When calculating the Scale Factor, use the whole
value of the number to be displayed, for example, 1.0 feet, the Desired
Readout in this case is 10. Do not use decimal points in the Scaling Formula.
For calculated SF values less than 9.99999
If the Scale Factor is a value less than 9.99999, it can be entered directly
into the meter as the Scale Factor and the Scale Multiplier can be left at 1.
For calculated SF values greater than 9.99999
If the Scale Factor is a value over 9.99999 (maximum value), the Scale
Multiplier must be used to reduce the calculated SF value until it is less then
9.99999. The Scale Multiplier multiplies the calculated Scale Factor value by
1, 0.1, and 0.01, thus reducing the calculated value accordingly. Select the
appropriate Scale Multiplier value that allows the Scale Factor to be a value
under 9.99999. Both the Scale Factor and Scale Multiplier can then be
entered into the meter.
Example 1:
This application involves counting cases from a production line. The sensor
provides a pulse for every can produced. The desired readout is in cases,
therefore the incoming pulses need to be converted to obtain the proper readout.
The following is used to calculate scale factor.
SF = DR
EPU
DR = 1 case
EPU = 12 cans/case
SF = 1
12
SF = 0.83333
Since the Calculated Scale Factor Value is less than 9.99999, it can be
entered directly into the meter. The Scale Multiplier can be left at 1.
Front Panel Reset
T
No Function
S
Access Programming ModePAR
PROGRAMMING MODE OPERATIONDISPLAY MODE OPERATIONKEY
Store selected parameter and index to next parameter
Increment selected digit of parameter value
Select digit position in parameter value

A
124 www.redlion.net
The Totalizer has four programmable parameters which are entered in the
sequence shown above, using the front panel push buttons.
Before programming, refer to the section on Scaling the Meter to determine
the Decimal Position, Scale Factor and Scale Multiplier to use for the specific
application.
Note: Programming mode can be locked out with the Program Disable DIP
switch. With the switch in the Disabled (up) position the meter will not enter
programming mode. Refer to the section on DIP switch setup.
PROGRAMMING MODE ENTRY
Press the PAR key to enter Programming Mode. The meter briefly displays
followed by the first programming parameter described below.
PROGRAMMING PARAMETERS
In programming mode, the display alternates between the parameter and the
current selection or value for that parameter. The dual display with arrows is
used below to illustrate the alternating display. The selection choices or value
range for each parameter is shown to the right of the alternating display.
This parameter selects the decimal point position on the display.
Press the arrow keys (Sor T) to sequence through the selection list until the
desired selection is shown. Press the PAR key to save the displayed selection
and advance to the next parameter.
The number of input counts is multiplied by the Scale Factor and the Scale
Multiplier to obtain the desired process value. A Scale Factor of 1.00000 and a
Scale Multiplier of 1 will result in the display of the actual number of input
counts. (See details on scaling calculations.)
The Scale Factor is displayed as a six-digit value with one selected digit
flashing (initially digit 6). Press the S(up arrow) key to increment the value of
the selected (flashing) digit. Holding the Skey automatically scrolls the value
of the selected digit.
Press the T(down arrow) key to select the next digit position to the right.
Use the Skey to increment the value of this digit to the desired number. Press
the Tkey again to select the next digit to be changed. Holding the Tkey
automatically scrolls through each digit position. Repeat the “select and set”
sequence until all digits are displaying the desired Scale Factor value. Press the
PAR key to save the displayed value and advance to the next parameter.
The number of input counts is multiplied by the Scale Multiplier and the
Scale Factor to obtain the desired process value. A Scale Multiplier of 1 will
result in only the Scale Factor affecting the display. (See details on scaling
calculations.)
Press the arrow keys (Sor T) to sequence through the selection list until the
desired selection is displayed. Press the PAR key to save the selection and exit
programming mode.
The totalizer may be programmed to reset at each meter power-up.
PROGRAMMING MODE EXIT
The meter exits Programming Mode when the PAR key is pressed to save the
Scale Multiplier selection. The meter briefly displays upon exiting
Programming Mode. All programmed selections are now transferred to the non-
volatile memory and the meter returns to the Counter display.
(If power loss occurs during programming mode, verify parameter changes
and reprogram, if necessary, when power is restored.)
PROGRAMMING MODE TIME OUT
The Programming Mode has an automatic time out feature. If no keypad
activity is detected for approximately 60 seconds, the meter automatically exits
Programming Mode. The meter briefly displays and returns to the Counter
display. When automatic timeout occurs, any changes that were made to the
parameter currently being programmed, will not be saved.
FACTORY SETTINGS
The factory settings for the programming parameters are shown above in the
alternating display illustrations. The factory settings can be easily restored by
removing power from the meter, and then pressing and holding the PAR key
while power is reapplied. The meter displays until the PAR key is
released. The normal power-up sequence then resumes, with the factory settings
loaded and saved in non-volatile memory. The Count is reset to 0.
Note: The Program Disable DIP switch must be in the Enabled (down)
position to allow loading factory settings. See section on DIP switch setup.
ª
«
ª
«
to
ª
«
DECIMAL POSITION
SCALE FACTOR
SCALE MULTIPLIER
ª
«
COUNTER RESET AT POWER-UP
6.0 PROGRAMMING THE METER
PROGRAMMING SEQUENCE

A
125
1-717-767-6511
GENERAL DESCRIPTION
The PAXLCR is a versatile meter that provides a single or dual counter with
rate indication, scaling and dual relay outputs. The 6-digit display has 0.56" high
digits with adjustable display intensity. The display can be toggled manually or
automatically between the selected counter and rate values.
The meter has two signal inputs and a choice of eight different count modes.
These include bi-directional, quadrature and anti-coincidence counting, as well
as a dual counter mode. When programmed as a Dual Counter, each counter has
separate scaling and decimal point selection.
Rate indication is available in all count modes. The Rate Indicator has
separate scaling and decimal point selection, along with programmable display
update times. In addition to the signal inputs, the User Input can be programmed
to perform a variety of meter control functions.
Two setpoint outputs are provided, each with a Form C relay. The outputs can
activate based on either counter or rate setpoint values. An internal batch counter
can be used to count setpoint output activations.
The PAXLCR can be powered from a wide range of AC or DC voltages. The
meter has been specifically designed for harsh industrial environments. With a
NEMA 4X/IP65 sealed bezel and extensive testing to meet CE requirements, the
meter provides a tough yet reliable application solution.
SAFETY SUMMARY
All safety regulations, local codes and instructions that appear in this and
corresponding literature, or on equipment, must be observed to ensure personal
safety and to prevent damage to either the instrument or equipment connected to
it. If equipment is used in a manner not specified by the manufacturer, the
protection provided by the equipment may be impaired. Do not use this meter
to directly command motors, valves, or other actuators not equipped with
safeguards. To do so can be potentially harmful to persons or equipment in the
event of a fault to the meter
SPECIFICATIONS
1. DISPLAY: 6 digit, 0.56" (14.2 mm) intensity adjustable Red LED
2. POWER REQUIREMENTS:
AC POWER: 50 to 250 VAC 50/60 Hz, 12 VA
Isolation: 2300 Vrms for 1 min. to all inputs and outputs
DC POWER: 21.6 to 250 VDC, 6 W
DC Out: +24 VDC @ 100 mA if input voltage is greater than 50 VAC/VDC
+24 VDC @ 50 mA if input voltage is less than 50 VDC
3. COUNTER DISPLAYS:
Counter A: 6-digits, enabled in all count modes
Display Designator: “A” to the left side of the display
Display Range: -99999 to 999999
Counter B: 6-digits, enabled in Dual Count mode or Batch Counter
Display Designator: “B” to the left side of the display
Display Range: 0 to 999999 (positive count only)
Overflow Indication: Display “” alternates with overflowed count value
Maximum Count Rates: 50% duty cycle, count mode dependent.
With setpoints disabled: 25 KHz, all modes except Quadrature x4 (23 KHz).
With setpoint(s) enabled: 20 KHz, all modes except Dual Counter (14 KHz),
Quadrature x2 (13 KHz) and Quadrature x4 (12 KHz).
z6 DIGIT, 0.56" HIGH RED LED DISPLAY
zPROGRAMMABLE SCALING FOR COUNT AND RATE
zBI-DIRECTIONAL COUNTING, UP/DOWN CONTROL
zQUADRATURE SENSING (UP TO 4 TIMES RESOLUTION)
zBUILT-IN BATCH COUNTING CAPABILITY
zPROGRAMMABLE USER INPUT
zDUAL 5 AMP FORM C RELAYS
zUNIVERSALLY POWERED
zNEMA 4X/IP65 SEALED FRONT BEZEL
MODEL PAXLCR - PAX LITE DUAL COUNTER AND RATE METER
DIMENSIONS In inches (mm)
CAUTION: Risk of Danger.
Read complete instructions prior to
installation and operation of the unit.
CAUTION: Risk of electric shock.
ORDERING INFORMATION
MODEL NO. DESCRIPTION PART NUMBER
PAXLCR00PAXLCR
Note: Recommended minimum clearance (behind the panel) for mounting clip installation is
2.1" (53.4) H x 5.0" (127) W.
Dual Counter & Rate Meter with dual Relay Output

A
126 www.redlion.net
4. RATE DISPLAY: 6-digits, may be enabled or disabled in any count mode
Display Range: 0 to 999999
Over Range Display: “”
Maximum Frequency: 25 KHz
Minimum Frequency: 0.01 Hz
Accuracy: ±0.01%
5. COUNT/RATE SIGNAL INPUTS (INPUT A and INPUT B):
See Section 2.0 Setting the DIP Switches for complete Input specifications.
DIP switch selectable inputs accept pulses from a variety of sources. Both
inputs allow selectable active low or active high logic, and selectable input
filtering for low frequency signals or switch contact debounce.
Input A: Logic level or magnetic pickup signals.
Trigger levels: VIL = 1.25 V max; VIH = 2.75 V min; VMAX = 28 VDC
Mag. pickup sensitivity: 200 mV peak, 100 mV hysteresis, 40 V peak max.
Input B: Logic level signals only
Trigger levels: VIL = 1.0 V max; VIH = 2.4 V min; VMAX = 28 VDC
6. USER INPUT: Programmable
Software selectable for active logic state: active low, pull-up (24.7 KΩto +5
VDC) or active high, pull-down resistor (20 KΩ).
Trigger levels: VIL = 1.0 V max; VIH = 2.4 V min; VMAX = 28 VDC
Response Time: 10 msec typ.; 50 msec debounce (activation and release)
7. MEMORY: Nonvolatile E2PROM retains all programming parameters and
count values when power is removed.
8. OUTPUTS:
Type: Dual Form C contacts
Isolation to Input & User/Exc Commons: 1400 Vrms for 1 min.
Working Voltage: 150 Vrms
Contact Rating: 5 amps @ 120/240 VAC or 28 VDC (resistive load), 1/8
H.P. @ 120 VAC (inductive load)
Life Expectancy: 100 K cycles min. at full load rating. External RC snubber
extends relay life for operation with inductive loads.
Response Time: Turn On or Off: 4 msec max.
9. ENVIRONMENTAL CONDITIONS:
Operating temperature: 0 to 50 °C
Storage temperature: -40 to 70 °C
Operating and storage humidity: 0 to 85% max. RH (non-condensing)
Vibration According to IEC 68-2-6: Operational 5 to 150 Hz, in X, Y, Z
direction for 1.5 hours, 2g’s.
Shock According to IEC 68-2-27: Operational 30 g (10g relay), 11 msec in 3
directions.
Altitude: Up to 2,000 meters
10. CONNECTIONS: High compression cage-clamp terminal block
Wire Strip Length: 0.3" (7.5 mm)
Wire Gage: 30-14 AWG copper wire
Torque: 4.5 inch-lbs (0.51 N-m) max.
11. CONSTRUCTION: This unit is rated for NEMA 4X/IP65 outdoor use. IP20
Touch safe. Installation Category II, Pollution Degree 2. One piece
bezel/case. Flame resistant. Synthetic rubber keypad. Panel gasket and
mounting clip included.
12. CERTIFICATIONS AND COMPLIANCES:
SAFETY
IEC 61010-1, EN 61010-1: Safety requirements for electrical equipment for
measurement, control, and laboratory use, Part 1.
IP65 Enclosure rating (Face only), IEC 529
Type 4X Enclosure rating (Face only), UL50
ELECTROMAGNETIC COMPATIBILITY
Emissions and Immunity to EN 61326: Electrical Equipment for
Measurement, Control and Laboratory use.
Notes:
1. Criterion A: Normal operation within specified limits.
2. Criterion C: Temporary loss of function which requires operator
intervention.
13. WEIGHT: 10.4 oz. (295 g)
1.0 INSTALLING THE METER
Installation
The PAX Lite meets NEMA 4X/IP65 requirements when properly installed.
The unit is intended to be mounted into an enclosed panel. Prepare the panel
cutout to the dimensions shown. Remove the panel latch from the unit. Slide the
panel gasket over the rear of the unit to the back of the bezel. The unit should be
installed fully assembled. Insert the unit into the panel cutout.
While holding the unit in place, push the panel latch over the rear of the unit
so that the tabs of the panel latch engage in the slots on the case. The panel latch
should be engaged in the farthest forward slot possible. To achieve a proper seal,
tighten the latch screws evenly until the unit is snug in the panel (Torque to
approximately 7 in-lbs [79N-cm]).
Do not over-tighten the screws.
Installation Environment
The unit should be installed in a location that does not exceed the maximum
operating temperature and provides good air circulation. Placing the unit near
devices that generate excessive heat should be avoided.
The bezel should be cleaned only with a soft cloth and neutral soap product.
Do NOT use solvents. Continuous exposure to direct sunlight may accelerate the
aging process of the bezel.
Do not use tools of any kind (screwdrivers, pens, pencils, etc.) to operate the
keypad of the unit.
PANEL CUT-OUT
Immunity to Industrial Locations:
Emissions:
Electrostatic discharge EN 61000-4-2 Criterion A
4 kV contact discharge
8 kV air discharge
Electromagnetic RF fields EN 61000-4-3 Criterion A
10 V/m
2 kV L&N-E power
Fast transients (burst) EN 61000-4-4 Criterion A
2 kV power
1 kV signal
Surge EN 61000-4-5 Criterion C
1 kV L-L,
0.5 cycle
RF conducted interference EN 61000-4-6 Criterion A
3 V/rms
Voltage dip/interruptions EN 61000-4-11 Criterion A
Emissions EN 55011 Class A

A
127
1-717-767-6511
3.0 WIRING THE METER
WIRING OVERVIEW
Electrical connections are made via screw-clamp terminals located on the
back of the meter. All conductors should conform to the meter’s voltage and
current ratings. All cabling should conform to appropriate standards of good
installation, local codes and regulations. It is recommended that the power
supplied to the meter (DC or AC) be protected by a fuse or circuit breaker.
When wiring the meter, compare the numbers embossed on the back of the
meter case against those shown in wiring drawings for proper wire position. Strip
the wire, leaving approximately 0.3" (7.5 mm) bare lead exposed (stranded wires
should be tinned with solder.) Insert the lead under the correct screw-clamp
terminal and tighten until the wire is secure. (Pull wire to verify tightness.)
EMC INSTALLATION GUIDELINES
Although this meter is designed with a high degree of immunity to Electro-
Magnetic Interference (EMI), proper installation and wiring methods must be
followed to ensure compatibility in each application. The type of the electrical
noise, source or coupling method into the meter may be different for various
installations. The meter becomes more immune to EMI with fewer I/O
connections. Cable length, routing, and shield termination are very important
and can mean the difference between a successful or troublesome installation.
Listed below are some EMC guidelines for successful installation in an
industrial environment.
1. The meter should be properly connected to protective earth.
2. Use shielded (screened) cables for all Signal and Control inputs. The shield
(screen) pigtail connection should be made as short as possible. The
connection point for the shield depends somewhat upon the application.
Listed below are the recommended methods of connecting the shield, in order
of their effectiveness.
a. Connect the shield only at the panel where the unit is mounted to earth
ground (protective earth).
b. Connect the shield to earth ground at both ends of the cable, usually when
the noise source frequency is above 1 MHz.
c. Connect the shield to common of the meter and leave the other end of the
shield unconnected and insulated from earth ground.
3. Never run Signal or Control cables in the same conduit or raceway with AC
power lines, conductors feeding motors, solenoids, SCR controls, and
heaters, etc. The cables should be ran in metal conduit that is properly
grounded. This is especially useful in applications where cable runs are long
and portable two-way radios are used in close proximity or if the installation
is near a commercial radio transmitter.
4. Signal or Control cables within an enclosure should be routed as far as possible
from contactors, control relays, transformers, and other noisy components.
5. In extremely high EMI environments, the use of external EMI suppression
devices, such as ferrite suppression cores, is effective. Install them on Signal
and Control cables as close to the unit as possible. Loop the cable through the
core several times or use multiple cores on each cable for additional protection.
Install line filters on the power input cable to the unit to suppress power line
interference. Install them near the power entry point of the enclosure. The
following EMI suppression devices (or equivalent) are recommended:
Ferrite Suppression Cores for signal and control cables:
Fair-Rite # 0443167251 (RLC# FCOR0000)
TDK # ZCAT3035-1330A
Steward # 28B2029-0A0
Line Filters for input power cables:
Schaffner # FN610-1/07 (RLC# LFIL0000)
Schaffner # FN670-1.8/07
Corcom # 1 VR3
Note: Reference manufacturer's instructions when installing a line filter.
6. Long cable runs are more susceptible to EMI pickup than short cable runs.
Therefore, keep cable runs as short as possible.
7. Switching of inductive loads produces high EMI. Use of snubbers across
inductive loads suppresses EMI.
Snubber: RLC# SNUB0000.
2.0 SETTING THE DIP SWITCHES
To access the switches, remove the meter base from the case by firmly
squeezing and pulling back on the side rear finger tabs. This should lower the
latch below the case slot (which is located just in front of the finger tabs). It is
recommended to release the latch on one side, then start on the other side latch.
Warning: Exposed line voltage exists on the circuit boards.
Remove all power to the meter and load circuits before accessing
inside of the meter.
SWITCH 1 (Input A)
LOGIC: Input A trigger levels VIL = 1.25 V max.; VIH = 2.75 V min.;
VMAX = 28 VDC
MAG: 200 mV peak input sensitivity; 100 mV hysteresis; maximum voltage:
40 V peak (28 Vrms); Must also have Input A SRC switch ON. (Not
recommended with counting applications.)
SWITCH 2 (Input A) {See Note 1}
SNK.: Adds internal 7.8 KΩpull-up resistor to +5 VDC, IMAX = 0.7 mA.
SRC.: Adds internal 3.9 KΩpull-down resistor, 7.2 mA max. @ 28 VDC max.
SWITCH 3 (Input A)
HI Frequency: Removes damping capacitor and allows max. frequency.
LO Frequency: Adds a damping capacitor for switch contact bounce. Limits
input frequency to 50 Hz and input pulse widths to 10 msec.
SWITCH 4 (Input B) {See Note 1}
SNK.: Adds internal 7.8 KΩpull-up resistor to +5 VDC, IMAX = 0.7 mA.
SRC.: Adds internal 3.9 KΩpull-down resistor, 7.2 mA max. @ 28 VDC max.
SWITCH 5 (Input B)
HI Frequency: Removes damping capacitor and allows max. frequency.
LO Frequency: Adds a damping capacitor for switch contact bounce. Limits
input frequency to 50 Hz and input pulse widths to 10 msec.
Note 1: When the DIP switch is in the SNK position (OFF), the signal input is
configured as active low. When the switch is in the SRC position (ON), the
signal input is configured as active high.
3
4
5
ON
SNK.
HI FREQ.
HI FREQ.
SRC.
LO FREQ.
LO FREQ.
Factory Setting
2
1
SNK.
LOGIC
SRC.
MAG.
Input A
Input B
Main
Circuit
Board
REAR TERMINALS
FRONT DISPLAY
INPUT SET-UP
DIP SWITCHES
5
4
3
2
1

A
128 www.redlion.net
3.3 USER INPUT WIRING
CAUTION: DC common (Terminal 4) is NOT isolated from Input common (Terminal 7) or User common (Terminal 9). In order
to preserve the safety of the meter application, DC common must be suitably isolated from hazardous live earth referenced
voltage; or Input common and User common must be at protective earth ground potential. If not, hazardous voltage may be
present at the Signal or User Inputs, and Input or User common terminals. Appropriate considerations must then be given
to the potential of the Input or User common with respect to earth ground.
Terminal 8: User Input
Terminal 9: User Common
3.4 SETPOINT (OUTPUT) WIRING
Terminal 10: NC 1
Terminal 11: NO 1
Terminal 12: Relay 1 Common
Terminal 13: NC 2
Terminal 14: NO 2
Terminal 15: Relay 2 Common
Current Sinking (Active Low Logic)
Current Sourcing (Active High Logic)
3.2 INPUT SIGNAL WIRING
3.1 POWER WIRING
DC Out Power
Terminal 3: + 24 VDC OUT
Terminal 4: Common
Power
Terminal 1: VAC/DC +
Terminal 2: VAC/DC -
AC Inputs From Tach Generators, Etc.
Input A
Two Wire Proximity, Current Source
Input A
Magnetic Pickup
Input A
Current Sourcing Output
Input A
Interfacing With TTL
Input A
Current Sinking Output
Input A
Switch or Isolated Transistor; Current Sink
Input A
Switch or Isolated Transistor; Current Source
Input A
*Switch position is application dependent.
Current Sink Output; Quad/Direction
Shaded areas not recommended for counting applications.
The meter provides a choice of eight different count modes using two signal inputs,
A and B. The Count Mode selected determines the action of Inputs A and B. Section
5.1, Input Setup Parameters, provides details on count mode selection and input action.

A
129
1-717-767-6511
4.0 REVIEWING THE FRONT BUTTONS AND DISPLAY
BUTTON DISPLAY MODE OPERATION PROGRAMMING MODE OPERATION
PAR Access Programming Mode Store selected parameter and index to next parameter
RST
SEL
Resets count display(s) and/or outputs
Index display through enabled values
OPERATING MODE DISPLAY DESIGNATORS
“A” - Counter A value
“B” - Counter B value (dual count or batch)
- Rate value is displayed with no designator
“SP1” - Indicates setpoint 1 output status.
“SP2” - Indicates setpoint 2 output status.
Pressing the SEL button toggles the meter through the selected displays. If display scroll is enabled, the display will toggle automatically every four seconds between
the enabled display values.
Advance through selection list/select digit position in
parameter value
Increment selected digit of parameter value
PROGRAMMING MODE ENTRY (PAR BUTTON)
It is recommended all programming changes be made off line, or before
installation. The meter normally operates in the Display Mode. No parameters
can be programmed in this mode. The Programming Mode is entered by
pressing the PAR button. If it is not accessible, then it is locked by either a
security code or a hardware lock.
MODULE ENTRY (SEL & PAR BUTTONS)
The Programming Menu is organized into four modules. These modules group
together parameters that are related in function. The display will alternate between
Pro and the present module. The SEL button is used to select the desired module.
The displayed module is entered by pressing the PAR button.
MODULE MENU (PAR BUTTON)
Each module has a separate module menu (which is shown at the start of each
module discussion). The PAR button is pressed to advance to a particular
parameter to be changed, without changing the programming of preceding
parameters. After completing a module, the display will return to Pro NO.
Programming may continue by accessing additional modules.
SELECTION / VALUE ENTRY
For each parameter, the display alternates between the present parameter and
the selections/value for that parameter. The SEL and RST buttons are used to
move through the selections/values for that parameter. Pressing the PAR button,
stores and activates the displayed selection/value. This also advances the meter to
the next parameter.
For numeric values, the value is displayed with one digit flashing (initially
the right most digit). Pressing the RST button increments the digit by one or the
user can hold the RST button and the digit will automatically scroll. The SEL
button will select the next digit to the left. Pressing the PAR button will enter the
value and move to the next parameter.
PROGRAMMING MODE EXIT (PAR BUTTON)
The Programming Mode is exited by pressing the PAR button with
displayed. This will commit any stored parameter changes to memory and
return the meter to the Display Mode. (If power loss occurs before returning to
the Display Mode, verify recent parameter changes.)
PROGRAMMING TIPS
It is recommended to start with Module 1 and proceed through each module in
sequence. When programming is complete, it is recommended to record the
parameter programming and lock out parameter programming with the user input
or programming security code.
FACTORY SETTINGS
Factory Settings may be completely restored in Module 3. This is useful
when encountering programming problems.
ALTERNATING SELECTION DISPLAY
In the explanation of the modules, the following dual display with arrows will
appear. This is used to illustrate the display alternating between the parameter
on top and the parameter’s Factory Setting on the bottom. In most cases,
selections and values for the parameter will be listed on the right.
Indicates Program Mode Alternating Display
Factory Settings are shown.
Parameter
Selection/Value
ª
«
5.0 PROGRAMMING THE METER
OVERVIEW
PROGRAMMING MENU

A
130 www.redlion.net
COUNTER A DECIMAL POSITION
This selects the decimal point position for Counter A. The selection will also
affect Counter A scale factor calculations.
COUNTER A SCALE FACTOR
The number of input counts is multiplied by the scale factor to obtain the
desired process value. A scale factor of 1.0000 will result in the display of the
actual number of input counts. (Details on scaling calculations are explained at
the end of this section.)*
to COUNTER B DECIMAL POSITION
This selects the decimal point position for Counter B. The selection will also
affect Counter B scale factor calculations.
ª
«
ª
«
COUNTER A COUNT LOAD VALUE
Counter A resets to this value if Reset to Count Load action is selected. To
enter a negative Count Load value, increment digit 6 to display a “-” sign.*
to
ª
«
ª
«
5.1 MODULE 1 - INPUT SETUP PARAMETERS ()
PARAMETER MENU
COUNT MODE
Select the count mode that corresponds with your application. The input
actions are shown in the boxes below. For simple counting applications, it is
recommended to use Count with Direction for the count mode. Simply leave the
direction input unconnected.
Shaded area selections only apply when Counter B is enabled (Dual Count
mode or batch counter).
Counter A SubtractCounter A Add
Counter A AddCounter A Add
Quad ACount A
Quad ACount A
Quad ACount A
Counter B AddCounter A Add
Counter A AddRate only
Counter A DirectionCounter A
INPUT B ACTIONINPUT A ACTION
2 Input Add/Subtract
2 Input Add/Add
Quadrature x4
Quadrature x2
Quadrature x1
Dual Counter
Rate/Counter
Count with Direction
DISPLAY MODE
Note: The Rate indicator signal is derived from Input A in all count modes.
ª
«
COUNTER A RESET ACTION
ª
«
When Counter A is reset, it returns to Zero or Counter A Count Load value.
This reset action applies to all Counter A resets, except a Setpoint generated
Counter Auto Reset programmed in Module 4.
COUNTER B BATCH COUNT ENABLE
ª
«
The Counter B Batch Count function internally counts the number of output
activations of the selected setpoint(s). The count source for the batch counter
can be SP1, SP2 or both. Batch counting is available in all count modes except
Dual Counter, which uses an external input signal for Counter B.
COUNTER A COUNT DIRECTION
ª
«
Reverse () switches the normal Counter A count direction shown in the
Count Mode parameter chart.
*For value entry instructions, refer to selection/value entry in the Programming
The Meter section.

A
131
1-717-767-6511
COUNTER RESET AT POWER-UP
COUNTER B SCALE FACTOR
The number of input or batch counts is multiplied by the scale factor to
obtain the desired process value. A scale factor of 1.0000 will result in the
display of the actual number of input or batch counts. (Details on scaling
calculations are explained at the end of this section.)*
to
SCALING FOR COUNT INDICATION
The counter’s scale factor is factory set to 1, to provide one count on the
display for each pulse that is input to the unit. In many applications, there will
not be a one-to-one correspondence between input pulses and display units.
Therefore, it is necessary for the meter to scale or multiply the input pulses by
a scale factor to achieve the desired display units (feet, meters, gallons, etc.)
The Count Scale Factor Value can range from 00.0001 to 99.9999. It is
important to note that the precision of a counter application cannot be improved
by using a scale factor greater than one. To accomplish greater precision, more
pulse information must be generated per measuring unit. The following formula
is used to calculate the scale factor.
Scale Factor = Desired Display Unitsx Decimal Point Position
Number of Pulses
WHERE:
Desired Display Units: Count display units acquired after pulses that occurred.
Number of Pulses: Number of pulses required to achieve the desired
display units.
Decimal Point Position:
0=1
0.0 = 10
0.00 = 100
0.000 = 1000
0.0000 = 10000
0.00000 = 100000
EXAMPLE 1: The counter display is used to indicate the total number of feet
used in a process. It is necessary to know the number of pulses for the
desired units to be displayed. The decimal point is selected to show the
resolution in hundredths.
Scale Factor = Desired Display Unitsx Decimal Point Position
Number of Pulses
Given that 128 pulses are equal to 1 foot, display total feet with a one-
hundredth resolution.
Scale Factor = 1.00 x 100
128
Scale Factor = 0.007812 x 100
Scale Factor = 0.7812
EXAMPLE 2: A manufacturer wants to count the total number of bricks
molded in a process yielding 12 bricks per mold. The counter receives 1
pulse per mold and should increase by 12 for each pulse received. Since
single brick accuracy is not required, a Scale Factor greater than 1 can be
used in this case.
Scale Factor = Desired Display Unitsx Decimal Point Position
Number of Pulses
Scale Factor = 12 x 1
1
Scale Factor = 12.0000
*For value entry instructions, refer to selection/value entry in the Programming
The Meter section.
ª
«
ª
«
USER INPUT ASSIGNMENT
The User Input Assignment is only active when Counter B is enabled and the
user input selection performs a Reset, Inhibit or Store function on one or both
of the counters.
USER INPUT FUNCTION
MODEDISPLAY
No Function
DESCRIPTION
User Input disabled.
Program Mode Lock-out
Maintained Reset
Inhibit
Level active reset of the
selected counter(s).
Inhibit counting for the
selected counter(s).
Store
Store and Reset
Edge triggered reset of the
selected counter(s) after
storing the count.
See Programming Mode
Access chart (Module 3).
Setpoint 1 and 2 Reset *
Setpoint 2 Reset *
Setpoint 1 Reset *
Display Intensity Level *
Display Select *
Freeze display for the selected
counter(s) while allowing
counts to accumulate internally.
Reset both setpoint 1 and 2
outputs.
Reset setpoint 2 output.
Reset setpoint 1 output.
Increase intensity one level
for each activation.
Advance once for each
activation.
ª
«
ª
«
ª
«
USER INPUT ACTIVE LEVEL
Select whether the user input is configured as active low or active high.
The selected counter(s) will reset at each meter power-up.
* Indicates Edge Triggered function. All others are Level Active functions.

A
132 www.redlion.net
The Low Update Time is the minimum amount of time between display
updates for the Rate display. Values of 0.1 and 0.2 seconds will update the
display correctly but may cause the display to appear unsteady.
RATE LOW UPDATE TIME (DISPLAY UPDATE)
to seconds
The High Update Time is the maximum amount of time before the Rate
display is forced to zero. (For more explanation, refer to Input Frequency
Calculation.) The High Update Time must be higher than the Low Update Time
and higher than the desired slowest readable speed (one divided by pulses per
second). The factory setting of 2.0, will force the display to zero for speeds
below 0.5 Hz or a pulse every 2 seconds.
RATE HIGH UPDATE TIME (DISPLAY ZERO)
to seconds
ª
«
ª
«
5.2 MODULE 2 - RATE SETUP PARAMETERS ()
PARAMETER MENU
RATE ENABLE
This parameter enables the Rate display. For maximum input frequency, Rate
Enable should be set to when not in use. When set to , the remaining rate
parameters are not accessible.
This selects the decimal point position for the rate display. This parameter does
not affect rate scaling calculations.
RATE DECIMAL POINT
RATE SCALING INPUT VALUE
RATE SCALING DISPLAY VALUE
Enter the desired Rate Display value. This value is entered using the front
panel buttons for either Scaling Style.*
Enter the corresponding Rate Input value using the Scaling Style selected.
to
to
*For value entry instructions, refer to selection/value entry in the Programming
The Meter section.
ª
«
ª
«
ª
«
RATE INPUT SCALING STYLE
If a Rate Input value (in Hz) and the corresponding Rate Display value are
known, the Key-in () Scaling Style can be used. This allows rate scaling
without the presence of a rate input signal.
If the Rate Input value has to be derived from the actual rate input signal, the
Apply () Scaling Style should be used.
ª
«
ª
«
SCALING FOR RATE INDICATION
To scale the Rate, enter a Scaling Display value with a corresponding Scaling
Input value. These values are internally plotted to a Display value of 0 and Input
value of 0.0 Hz. A linear relationship is formed between these points to yield a
rate display value that corresponds to the incoming input signal rate. The meter
is capable of showing a rate display value for any positive slope linear process.
SCALING CALCULATION FOR KEY-IN STYLE
If a display value versus input signal (in pulses per second) is known, then
those values can be entered into Scaling Display () and Scaling Input
(). No further calculations are needed.
If only the number of pulses per ‘single’ unit (i.e. # of pulses per foot) is
known, then it can be entered as the Scaling Input value and the Scaling Display
value will be entered as the following:
NOTES:
1. If # of pulses per unit is less than 1, multiply both Input and Display values
by 10 or 100 as needed to obtain greater accuracy.
2. If the Display value is raised or lowered, then Input value must be raised
or lowered by the same proportion (i.e. Display value for per hour is
entered by a third less (1200) then Input value is a third less of # of pulses
per unit). The same is true if the Input value is raised or lowered, then
Display value must be raised or lowered by the same proportion.
3. Both values must be greater than 0.
EXAMPLE:
1. With 15.1 pulses per foot, show feet per minute in tenths. Scaling Display
= 60.0 Scaling Input = 15.1.
2. With 0.25 pulses per gallon, show whole gallons per hour. (To have greater
accuracy, multiply both Input and Display values by 10.) Scaling Display
= 36000 Scaling Input = 2.5.
RATE PER DISPLAY ()INPUT ()
Second 1 # of pulses per unit
Minute 60 # of pulses per unit
Hour 3600 # of pulses per unit
Key-in Style:
Enter the Rate Input value using the front panel buttons. This value is always
in pulses per second (Hz).*
Apply Style:
The meter initially shows the stored Rate Input value. To retain this value,
press PAR to advance to the next parameter. To enter a new value, apply the rate
input signal to Input A. Press RST and the applied input frequency (in Hz) will
appear on the display. To insure the correct reading, wait several rate sample
periods (see Rate Low Update Time) or until a consistent reading is displayed.
Press PAR to store the displayed value as the new Rate Input value.

A
133
1-717-767-6511
The selection allows the SEL key to toggle through the enabled displays.
FRONT PANEL DISPLAY SELECT ENABLE (SEL)
5.3 MODULE 3 - DISPLAY AND FRONT PANEL KEY
PARAMETERS ()
PARAMETER MENU
The selection allows the RST key to reset the selected counter(s). The
shaded selections are only active when Counter B is enabled (Dual Count Mode
or batch counter).
FRONT PANEL COUNTER RESET ENABLE (RST)
The selection allows the display to automatically scroll through the
enabled displays. Each display is shown for 4 seconds.
DISPLAY SCROLL ENABLE
Enter the desired Display Intensity Level (1-5). The display will actively dim
or brighten as levels are changed.
DISPLAY INTENSITY LEVEL
The Security Code determines the programming mode and the accessibility
of programming parameters. This code can be used along with the Program
Mode Lock-out () in the User Input Function parameter (Module 1).
Two programming modes are available. Full Programming mode allows all
unit parameters to be viewed and modified. Quick Programming mode permits
only user selected values to be modified, but allows direct access to these values
without having to enter Full Programming mode.
Entering a Security Code from 1-99 enables Quick Programming mode, and
displays a sublist to select which values appear in the Quick Programming
menu. All of the values set to in the sublist are accessible in Quick
Programming. The values include Setpoints (, ), Output Time-outs
(, ), Count Load value ( ) and Display Intensity ().
Programming any Security Code other than 0, requires this code to be entered
at the prompt in order to access Full Programming mode. Quick
Programming mode, if enabled, is accessed before the prompt appears.
PROGRAMMING SECURITY CODE
to
to
ª
«
ª
«
ª
«
ª
«
ª
«
USER INPUT
FUNCTION
USER INPUT
STATE
SECURITY
CODE
MODE WHEN “PAR”
KEY IS PRESSED
FULL PROGRAMMING
MODE ACCESS
0Full Programming Immediate Access
not
______ 1-99 Quick
Programming
After Quick Programming
with correct code entry
at prompt *
100-999 prompt With correct code entry
at prompt *
0Programming
Lock No Access
Active 1-99 Quick
Programming No Access
100-999 prompt With correct code entry
at prompt *
Not Active 0-999 Full Programming Immediate Access
* Entering Code 222 allows access regardless of security code.
INPUT FREQUENCY CALCULATION
The meter determines the input frequency by summing the number of falling
edges received during a sample period of time. The sample period begins on the
first falling edge. At this falling edge, the meter starts accumulating time
towards Low Update and High Update values. Also, the meter starts
accumulating the number of falling edges. When the time reaches the Low
Update Time value, the meter looks for one more falling edge to end the sample
period. If a falling edge occurs (before the High Update Time value is reached),
the Rate display will update to the new value and the next sample period will
start on the same edge. If the High Update Time value is reached (without
receiving a falling edge after reaching Low Update Time), then the sample
period will end but the Rate display will be forced to zero. The High Update
Time value must be greater than the Low Update Time value. Both values must
be greater than 0.0. The input frequency calculated during the sample period, is
then shown as a Rate value determined by the scaling calculation.

A
134 www.redlion.net
5.4 MODULE 4 - SETPOINT OUTPUT PARAMETERS ()
PARAMETER MENU
Select the Setpoint Output to be programmed, starting with Setpoint 1. The
“” in the following parameters reflects the chosen Setpoint number. After the
selected setpoint is completely programmed, the display returns to .
Repeat steps for Setpoint 2 if both Setpoints are being used. Select to exit the
Setpoint programming module.
SETPOINT SELECT
Select to enable the chosen setpoint and access the setup parameters. If
is selected, the unit returns to and the setpoint is disabled.
SETPOINT ENABLE
Select to perform either of the Factory Service Operations shown below.
FACTORY SERVICE OPERATIONS
ª
«
Entering Code 50 will display the model and version (x.x) of the meter. The
display then returns to . Press the PAR button to exit the module.
VIEW MODEL AND VERSION DISPLAY
ª
«
ª
«
Select the display to which the Setpoint is assigned.
SETPOINT ASSIGNMENT
ª
«
ª
«
Entering Code 66 will overwrite all user settings with the factory default
settings. The meter will display and then return to . Press the
PAR button to exit the module.
RESTORE FACTORY DEFAULT SETTINGS
ª
«
Some Setpoint parameters will not appear depending on the Setpoint Assignment and Setpoint
Output Action selected. The Setpoint Parameter Availability chart below illustrates this.
COUNTER ASSIGNMENT (A or B)* RATE ASSIGNMENT
DESCRIPTION TIMED OUT
BOUNDARY
LATCH
TIMED OUT
BOUNDARY
LATCH
tOUt-n Setpoint Output Time-out Value Ye s No No Yes No No
SPt-n Setpoint Value Yes Yes Yes Yes Yes Yes
Out-n Setpoint Output Logic Yes Yes Yes Yes Yes Yes
Lit-n Setpoint Annunciator Yes Yes Yes Yes Yes Yes
P-UP-n Setpoint Output Power-up State No No Yes No No Yes
tYPE-n Setpoint Boundary Type No Ye s No Yes Yes Yes
StbY-n No Yes No Yes Yes Yes
AUtO-n Counter Auto Reset Yes No Yes No No No
OFF2-1 SP1 Output Off at SP2 (SP1 only) Yes No Yes No No No
OFF1-2 SP2 Output Off at SP1 (SP2 only) Yes No Yes No No No
rSt-n Output Reset with Manual Reset Yes No Yes Yes No Yes
Standby Operation (Low ActingOnly)
PARAMETER
* BOUNDARY Setpoint Action not applicable for Counter B assignment.

A
135
1-717-767-6511
will restore the output to the same state it was at before the meter was
powered down. will activate the output at power up. will deactivate the
output at power up.
SETPOINT OUTPUT POWER-UP STATE
Normal () turns the output “on” when activated and “off” when
deactivated. Reverse () turns the output “off” when activated and “on”
when deactivated.
SETPOINT OUTPUT LOGIC
SETPOINT VALUE
Enter the desired Setpoint value. To enter a negative setpoint value,
increment digit 6 to display a “-” sign (Counter A only).
This parameter automatically resets the Setpoint Assigned Counter (A or B)
each time the Setpoint value is reached. The automatic reset can occur at output
start, or output end if the Setpoint Output Action is programmed for timed
output mode. The Reset-to-Count Load selections (“”) only apply to
Counter A assignment. This reset may be different from the Counter A Reset
Action selected in Module 1.
COUNTER AUTO RESET
Selecting causes the Setpoint output to deactivate (reset) when the
Setpoint Assigned Counter is reset. The counter reset can occur by the RST
button, User Input or Counter Reset at Power-up.
This output reset will not occur when the Assigned Counter is reset by a
Setpoint generated Counter Auto Reset.
SETPOINT OUTPUT RESET WITH MANUAL RESET
Count B: to
Count A: to
Rate: to
ª
«
ª
«
This parameter will deactivate Setpoint 1 output at the Start or End of
Setpoint 2 output (O1 off at O2). The “” setting only applies if Setpoint 2
Output Action is programmed for timed output.
SETPOINT 1 OUTPUT OFF AT SETPOINT 2 (SP1 Only)
ª
«
This parameter will deactivate Setpoint 2 output at the Start or End of
Setpoint 1 output (O2 off at O1). The “” setting only applies if Setpoint 1
Output Action is programmed for timed output.
SETPOINT 2 OUTPUT OFF AT SETPOINT 1 (SP2 Only)
ª
«
ª
«
High Acting Boundary Type activates the output when the assigned display
value () equals or exceeds the Setpoint value. Low Acting activates the
output when the assigned display value is less than or equal to the Setpoint.
SETPOINT BOUNDARY TYPE
ª
«
This parameter only applies to Low Acting Boundary Type setpoints. Select
to disable a Low Acting Setpoint at power-up, until the assigned display
value crosses into the output “off” area. Once in the output “off” area, the
Setpoint will then function per the description for Low Acting Boundary Type.
SETPOINT STANDBY OPERATION
ª
«
Normal () displays the setpoint annunciator when the corresponding output
is “on”. Reverse () displays the setpoint annunciator when the output is “off”.
SETPOINT ANNUNCIATOR
ª
«
ª
«
ª
«
This parameter selects the action of the Setpoint output as described in the
chart below. Boundary mode is not applicable for Counter B assignment.
SETPOINT OUTPUT ACTION
ª
«
When Count
> Setpoint
When Count
< Setpoint
When Count ≤
Setpoint
When Count ≥
Setpoint
Boundary Mode
(Low Acting)
Boundary Mode
(High Acting)
After Setpoint
Output Time-Out
When Count =
Setpoint
Timed Output Mode
At Manual Reset
(if =)
When Count =
Setpoint
Latched Output Mode
OUTPUT DEACTIVATESOUTPUT ACTIVATESDESCRIPTIONSPT ACTION
SETPOINT OUTPUT TIME-OUT
This parameter is only active if the Setpoint Action is set to timed output
mode (). Enter the value in seconds that the output will be active, once
the Setpoint Value is reached.
to seconds
ª
«
SELECTION ACTION
NO No Auto Reset
ZEr-St Reset to Zero at the Start of output activation
CLd-St Reset to Count Load value at the Start of output activation
ZEr-En
CLd-En
Reset to Zero at the End of output activation (timed out only)
Reset to Count Load at the End of output activation (timed out only)

A
136 www.redlion.net
PAXLCR PROGRAMMING QUICK OVERVIEW
Press PAR key to enter
Programming Mode.

A
137
1-717-767-6511
MODELS: COUNTER/RATE (PAXI) COUNTER (PAXC) RATE (PAXR)
zCOUNT, DUAL COUNTER, RATE AND SLAVE DISPLAY
z0.56" RED SUNLIGHT READABLE DISPLAY
zVARIABLE INTENSITY DISPLAY
z10 POINT SCALING FOR NON-LINEAR PROCESSES (PAXI)
zFOUR SETPOINT ALARM OUTPUTS (W/Option Card)
zRETRANSMITTED ANALOG OUTPUT (W/Option Card) (PAXI)
zCOMMUNICATION AND BUS CAPABILITIES (W/Option Card) (PAXI)
zBUS CAPABILITIES; DEVICENET, MODBUS, AND PROFIBUS-DP
zCRIMSON PROGRAMMING SOFTWARE (PAXI)
zETHERNET(W/ External Gateway) (PAXI)
zNEMA 4X/IP65 SEALED FRONT BEZEL
GENERAL DESCRIPTION
The PAX Digital Input Panel Meters offer many features and performance
capabilities to suit a wide range of industrial applications. Available in three
different models, PAXC Counter/Dual Counter, PAXR Rate Meter and the PAXI
which offers both counting and rate in the same package. Refer to pages 4 - 5 for
the details on the specific models. The PAXC and PAXR offer only the Setpoint
Option, while the PAXI is the fully featured version offering all the capabilities
as outlined in this bulletin as well as a slave display feature. The optional plug-
in output cards allow the opportunity to configure the meter for present
applications, while providing easy upgrades for future needs.
The meters employ a bright 0.56" LED display. The meters are available with
a red sunlight readable or standard green LED display. The intensity of the
display can be adjusted from dark room applications up to sunlight readable,
making it ideal for viewing in bright light applications.
The meters accept digital inputs from a variety of sources including switch
contacts, outputs from CMOS or TTL circuits, magnetic pickups and all
standard RLC sensors. The meter can accept directional, uni-directional or
Quadrature signals simultaneously. The maximum input signal varies up to 34
KHz depending on the count mode and function configurations programmed.
Each input signal can be independently scaled to various process values.
The Rate Meters provide a MAX and MIN reading memory with
programmable capture time. The capture time is used to prevent detection of false
max or min readings which may occur during start-up or unusual process events.
The meters have four setpoint outputs, implemented on Plug-in option cards.
The Plug-in cards provide dual FORM-C relays (5A), quad FORM-A (3A), or
either quad sinking or quad sourcing open collector logic outputs. The setpoint
alarms can be configured to suit a variety of control and alarm requirements.
Communication and Bus Capabilities are also available as option cards for
the PAXI only. These include RS232, RS485, Modbus, DeviceNet, and
Profibus-DP. Readout values and setpoint alarm values can be controlled
through the bus. Additionally, the meters have a feature that allows a remote
computer to directly control the outputs of the meter. With an RS232 or RS485
card installed, it is possible to configure the meter using Red Lion’s Crimson
software. The configuration data can be saved to a file for later recall.
A linear DC output signal is available as an optional Plug-in card for the PAXI
only. The card provides either 20 mA or 10 V signals. The output can be scaled
independent of the input range and can track any of the counter or rate displays.
Once the meters have been initially configured, the parameter list may be
locked out from further modification in its entirety or only the setpoint values
can be made accessible.
The meters have been specifically designed for harsh industrial environments.
With NEMA 4X/IP65 sealed bezel and extensive testing of noise effects to CE
requirements, the meter provides a tough yet reliable application solution.
SAFETY SUMMARY
All safety related regulations, local codes and instructions that appear in this
literature or on equipment must be observed to ensure personal safety and to
prevent damage to either the instrument or equipment connected to it. If
equipment is used in a manner not specified by the manufacturer, the protection
provided by the equipment may be impaired.
Do not use this meter to directly command motors, valves, or other actuators
not equipped with safeguards. To do so can be potentially harmful to persons or
equipment in the event of a fault to the meter.
MODEL PAX - 1/8 DIN DIGITAL INPUT PANEL METERS
CAUTION: Risk of Danger.
Read complete instructions prior to
installation and operation of the unit.
CAUTION: Risk of electric shock.
DIMENSIONS In inches (mm) Note: Recommended minimum clearance (behind the panel) for
mounting clip installation is 2.1" (53.4) H x 5" (127) W.
C
C
US LISTED
US LISTED
UL
R
IND. CONT. EQ.
51EB

A
138 www.redlion.net
Accessories
Ordering Information . . . . . . . . . . . . . . . . . . . 2
General Meter Specifications. . . . . . . . . . . . . 3
PAXC Counter . . . . . . . . . . . . . . . . . . . . . . . 4
PAXR Rate Meter . . . . . . . . . . . . . . . . . . . . . 4
PAXI Counter/Rate Meter . . . . . . . . . . . . . . . 5
Optional Plug-In Output Cards . . . . . . . . . . . 6
Installing the Meter . . . . . . . . . . . . . . . . . . . . 7
Setting the Jumper and DIP Switches . . . . . . 7
Installing Plug-In Cards . . . . . . . . . . . . . . . . . 8
Wiring the Meter . . . . . . . . . . . . . . . . . . . . . . 9
Reviewing the Front Buttons and Display. . . 11
Programming the Meter . . . . . . . . . . . . . . . 12
Factory Service Operations . . . . . . . . . . . . . 28
Troubleshooting . . . . . . . . . . . . . . . . . . . . . 29
Parameter Value Chart . . . . . . . . . . . . . . . . 30
Programming Overview. . . . . . . . . . . . . . . . 32
TABLE OFCONTENTS
Meter Part Numbers
Option Card and Accessories Part Numbers
ORDERING INFORMATION
PAX 00
C - Counter/Dual Counter
R - Rate Meter
I - Counter/Dual Counter/
Rate Meter/Slave Display
0 - Red, Sunlight Readable Display
1 - Green Display
0 - 85 to 250 VAC
1 - 11 to 36 VDC, 24 VAC
Shaded areas are only available for the PAXIShaded areas are only available for the PAXI
*Crimson software is available for free download from http://www.redlion.net/
PAXCDC50
PAXCDL10
PAXCDC4C
ICM80000
SFCRD200
Profibus-DP Communications Card
Analog Output Card
Extended Modbus Communications Card with Dual RJ11 Connector
Communication Gateway
Crimson 2 PC Configuration Software for Windows 98, ME, 2000 and XP
ICM8
SFCRD*
PAXCDC2C
PAXCDC20RS232 Serial Communications Card with Terminal Block
Optional
Plug-In
Cards
PAXCDC40Modbus Communications Card
PAXCDC1C
PAXCDC10RS485 Serial Communications Card with Terminal Block
PAXCDC
PAXCDS40Quad Setpoint Sourcing Open Collector Output Card
PAXCDS30Quad Setpoint Sinking Open Collector Output Card
PAXCDC30
PAXCDS20Quad Setpoint Relay Output Card
TYPE
DeviceNet Communications Card
PAXCDS10Dual Setpoint Relay Output Card
PAXCDS
Accessories
PART NUMBERSDESCRIPTIONMODEL NO.
Extended RS232 Serial Communications Card with 9 Pin D Connector
Extended RS485 Serial Communications Card with Dual RJ11 Connector

A
139
1-717-767-6511
GENERAL METER SPECIFICATIONS
1. DISPLAY: 6 digit, 0.56" (14.2 mm) red sunlight readable or standard green
LED
2. POWER:
AC Versions:
AC Power: 85 to 250 VAC, 50/60 Hz, 18 VA
Isolation: 2300 Vrms for 1 min. to all inputs and outputs. (300 V working)
DC Versions:
DC Power: 11 to 36 VDC, 14 W
(derate operating temperature to 40° C if operating <15 VDC and three
plug-in option cards are installed)
AC Power: 24 VAC, ± 10%, 50/60 Hz, 15 VA
Isolation: 500 Vrms for 1 min. to all inputs and outputs (50 V working).
3. SENSOR POWER: 12 VDC, ±10%, 100 mA max. Short circuit protected
4. KEYPAD: 3 programmable function keys, 5 keys total
5. USER INPUTS: Three programmable user inputs
Max. Continuous Input: 30 VDC
Isolation To Sensor Input Commons: Not isolated
Logic State: Jumper selectable for sink/source logic
Response Time: 6 msec. typical; function dependent. Certain resets, stores
and inhibits respond within 25 μsec if an edge occurs with the associated
counter or within 6 msec if no count edge occurs with the associated
counter. These functions include , , , ,
, , and . Once activated, all functions are latched for
50 msec min. to 100 msec max. After that period, another edge/level may
be recognized.
6. MEMORY: Nonvolatile E2PROM retains all programmable parameters and
display values.
7. CERTIFICATIONS AND COMPLIANCES:
SAFETY
UL Recognized Component, File #E179259, UL61010A-1, CSA C22.2
No. 1010-1
Recognized to U.S. and Canadian requirements under the Component
Recognition Program of Underwriters Laboratories, Inc.
UL Listed, File #E137808, UL508, CSA C22.2 No. 14-M95
LISTED by Und. Lab. Inc. to U.S. and Canadian safety standards
Type 4X Enclosure rating (Face only), UL50
IECEE CB Scheme Test Certificate #US/8843/UL
CB Scheme Test Report #04ME11209-20041018
Issued by Underwriters Laboratories, Inc.
IEC 61010-1, EN 61010-1: Safety requirements for electrical
equipment for measurement, control, and laboratory use, Part 1.
IP65 Enclosure rating (Face only), IEC 529
IP20 Enclosure rating (Rear of unit), IEC 529
ELECTROMAGNETIC COMPATIBILITY
Note:
Refer to EMC Installation Guidelines section of the bulletin for additional
information.
8. ENVIRONMENTAL CONDITIONS:
Operating Temperature Range: 0 to 50°C (0 to 45°C with all three plug-in
cards installed)
Storage Temperature Range: -40 to 60°C
Operating and Storage Humidity: 0 to 85% max. relative humidity non-
condensing
Altitude: Up to 2000 meters
9. CONNECTIONS: High compression cage-clamp terminal block
Wire Strip Length: 0.3" (7.5 mm)
Wire Gage: 30-14 AWG copper wire
Torque: 4.5 inch-lbs (0.51 N-m) max.
10. CONSTRUCTION: This unit is rated for NEMA 4X/IP65 outdoor use.
IP20 Touch safe. Installation Category II, Pollution Degree 2. One piece
bezel/case. Flame resistant. Synthetic rubber keypad. Panel gasket and
mounting clip included.
11. WEIGHT: 10.1 oz. (286 g)
VIN > 3.6 VDC VIN < 0.9 VDC
Inactive
VIN < 0.9 VDC VIN > 3.6 VDC
Active
SINKING INPUTS
5.1 KΩΩpull-up to +12 V
SOURCING INPUTS
5.1 KΩΩpull-down
INPUT STATE
Power mains class A
Enclosure class AEN 55011RF interference
Emissions to EN 50081-2
150 KHz - 80 MHz
Level 3; 10 V/rms EN 61000-4-6RF conducted interference
Level 3; 2 Kv power
Level 4; 2 Kv I/OEN 61000-4-4Fast transients (burst)
80 MHz - 1 GHz
Level 3; 10 V/mEN 61000-4-3Electromagnetic RF fields
Level 3; 8 Kv air
Level 2; 4 Kv contactEN 61000-4-2Electrostatic discharge
200 Hz, 50% duty cycle
900 MHz ±5 MHz
Immunity to EN 50082-2
Level 3; 10 V/mENV 50204Simulation of cordless telephones

A
140 www.redlion.net
MODEL PAXC - 1/8 DIN COUNTER
ANNUNCIATORS:
A - Counter A
B - Counter B
C - Counter C
- Upper significant digit display of counter
SP1 - setpoint 1 output state
SP2 - setpoint 2 output state
SP3 - setpoint 3 output state
SP4 - setpoint 4 output state
COUNTER DISPLAYS:
Maximum display: 8 digits: ± 99999999 (greater than 6 digits display
Alternates between high order and low order.)
INPUTS A and B:
DIP switch selectable to accept pulses from a variety of sources including
switch contacts, TTL outputs, magnetic pickups and all standard RLC
sensors.
LOGIC: Input trigger levels VIL = 1.5 V max.; VIH = 3.75 V min.
Current sinking: Internal 7.8 KΩpull-up to +12 VDC, IMAX = 1.9 mA.
Current sourcing: Internal 3.9 KΩpull-down, 7.3 mA max. @ 28 VDC,
VMAX = 30 VDC.
Filter: Damping capacitor provided for switch contact bounce. Limits
input frequency to 50 Hz and input pulse widths to 10 msec. minimum.
DUAL COUNT MODES:
When any dual count mode is used, then User Inputs 1 and/or 2 will
accept the second signal of each signal pair. The user inputs do not have
the Logic/Mag, HI/LO Freq, and Sink/Source input setup switches. The
user inputs are inherently a logic input with no low frequency filtering.
Any mechanical contacts used for these inputs in a dual count mode
must be debounced externally. The user input may only be selected for
sink/source by the User Jumper placement.
MODEL PAXR - 1/8 DIN RATE METER
PAXR SPECIFICATIONS
ANNUNCIATORS:
- Rate
- Maximum (High) Rate
- Minimum (Low) Rate
SP1 - setpoint 1 output state
SP2 - setpoint 2 output state
SP3 - setpoint 3 output state
SP4 - setpoint 4 output state
RATE DISPLAY:
Accuracy: ±0.01%
Minimum Frequency: 0.01 Hz
Maximum Frequency: 34 KHz
Maximum Display: 5 Digits: 99999
Adjustable Display (low) Update: 0.1 to 99.9 seconds
Over Range Display: “ ”
INPUT A:
DIP switch selectable to accept pulses from a variety of sources including
TTL outputs, magnetic pickups and all standard RLC sensors.
LOGIC: Input trigger levels VIL = 1.5 V max.; VIH = 3.75 V min.
Current sinking: Internal 7.8 KΩpull-up to +12 VDC, IMAX = 1.9 mA.
Current sourcing: Internal 3.9 KΩpull-down, 7.3 mA max. @ 28 VDC,
VMAX = 30 VDC.
MAGNETIC PICKUP:
Sensitivity: 200 mV peak
Hysteresis: 100 mV
Input impedance: 3.9 KΩ@ 60 Hz
Maximum input voltage: ±40 V peak, 30 Vrms
z6-DIGIT LED DISPLAY (Alternating 8 digits for counting)
zDUAL COUNT QUAD INPUTS
zUP TO 3 COUNT DISPLAYS
zSETPOINT ALARM OUTPUTS (W/Plug-in card)
z5-DIGIT LED DISPLAY
zRATE INDICATION
zMINIMUM/MAXIMUM RATE DISPLAYS
zSETPOINT ALARM OUTPUTS (W/Plug-in card)
PAXC SPECIFICATIONS
MAXIMUM SIGNAL FREQUENCIES:
To determine the maximum frequency for the input(s), first answer the
questions with a yes (Y) or no (N). Next determine the Count Mode to be
used for the counter(s). If dual counters are used with different Count Modes,
then the lowest frequency applies to both counters.
Notes:
1. Counter Modes are explained in the Module 1 programming section.
2. Listed values are with frequency DIP switch set on HI frequency.
FUNCTION QUESTIONS Dual: Counter A & BSingle: Counter A or B
Are any setpoints used? NN Y Y NN Y Y
Is Counter C used? NY N Y N Y N Y
COUNT MODE (Values are in KHz) (Values are in KHz)
Count x1 34 25 18 15 13 12 97.5
Count x2 17 13 9 7 9 7 5 4
Quadrature x1 22 19 12 10 7643.5
Quadrature x2 17 13 9 7 7 6 4 3.5
Quadrature x4 8 6 4 3

A
141
1-717-767-6511
MODEL PAXI - 1/8 DIN COUNTER/RATE METER
ANNUNCIATORS:
A - Counter A
B - Counter B
C - Counter C
- Rate
- Maximum (High) Rate
- Minimum (Low) Rate
- Upper significant digit display of counter
SP1 - setpoint 1 output state
SP2 - setpoint 2 output state
SP3 - setpoint 3 output state
SP4 - setpoint 4 output state
RATE DISPLAY:
Accuracy: ±0.01%
Minimum Frequency: 0.01 Hz
Maximum Frequency: see Max Signal Frequencies Table.
Maximum Display: 5 Digits: 99999
Adjustable Display (low) Update: 0.1 to 99.9 seconds
Over Range Display: “ ”
COUNTER DISPLAYS:
Maximum display: 8 digits: ± 99999999 (greater than 6 digits display
Alternates between high order and low order.)
INPUTS A and B:
DIP switch selectable to accept pulses from a variety of sources
including switch contacts, TTL outputs, magnetic pickups and all
standard RLC sensors.
LOGIC: Input trigger levels VIL = 1.5 V max.; VIH = 3.75 V min.
Current sinking: Internal 7.8 KΩpull-up to +12 VDC, IMAX = 1.9 mA.
Current sourcing: Internal 3.9 KΩpull-down, 7.3 mA max. @ 28 VDC,
VMAX = 30 VDC.
Filter: Damping capacitor provided for switch contact bounce. Limits
input frequency to 50 Hz and input pulse widths to 10 msec. minimum.
MAGNETIC PICKUP:
Sensitivity: 200 mV peak
Hysteresis: 100 mV
Input impedance: 3.9 KΩ@ 60 Hz
Maximum input voltage: ±40 V peak, 30 Vrms
DUAL COUNT MODES:
When any dual count mode is used, then User Inputs 1 and/or 2 will
accept the second signal of each signal pair. The user inputs do not have
the Logic/Mag, HI/LO Freq, and Sink/Source input setup switches. The
user inputs are inherently a logic input with no low frequency filtering.
Any mechanical contacts used for these inputs in a dual count mode
must be debounced externally. The user input may only be selected for
sink/source by the User Jumper placement.
PRESCALER OUTPUT:
NPN Open Collector: ISNK = 100 mA max. @ VOL = 1 VDC max. VOH = 30
VDC max. With duty cycle of 25% min. and 50 % max.
PAXI SPECIFICATIONS
MAXIMUM SIGNAL FREQUENCIES TABLE
To determine the maximum frequency for the input(s), first answer the
questions with a yes (Y) or no (N). Next determine the Count Mode to be used
for the counter(s). If dual counters are used with different Count Modes, then
the lowest frequency applies to both counters.
Notes:
1. Counter Modes are explained in the Module 1 programming section.
2. If using Rate with single counter with direction or quadrature, assign it to Input A for the listed frequency.
3. * Double the listed value for Rate frequency.
4. Listed values are with frequency DIP switch set on HI frequency.
5. Derate listed frequencies by 20% during serial communications. (Placing a 5 msec. delay between serial characters will eliminate the derating.)
zCOUNT, RATE AND SLAVE DISPLAY
z6-DIGIT 0.56" RED SUNLIGHT READABLE DISPLAY
zVARIABLE INTENSITY DISPLAY
z10 POINT SCALING (FOR NON-LINEAR PROCESSES)
zFOUR SETPOINT ALARM OUTPUTS (W/OPTION CARD)
zRETRANSMITTED ANALOG OUTPUT (W/OPTION CARD)
zCOMMUNICATION AND BUS CAPABILITIES (W/OPTION CARD)
zBUS CAPABILITIES; DEVICENET, MODBUS, AND PROFIBUS-DP
zCRIMSON PROGRAMMING SOFTWARE
N/A21N/A34N/A21N/A34Rate Only
34346868Quadrature x4
3 *3.5 *3.5 *4 *5 *6 *6 *7 *687912161317Quadrature x2
3 *3.5 *3.5 *4 *5 *6 *6 *7 *1011101217201922Quadrature x1
4 *5 *4 *5 *7 *9 *7 *9 *787912161317Count x2
797.59111312131113151817212534Count x1
(Values are in KHz)(Values are in KHz)(Values are in KHz)(Values are in KHz)COUNT MODE
YNYNYNYNYNYNYNYNIs Counter C used?
YYNNYYNNYYNNYYNNIs Prescaler Output used?
YYYYNNNNYYYYNNNNAre any setpoints used?
Dual: Counter A & B or Rate not assigned to active single counterSingle: Counter A or B (with/without rate) or Rate onlyFUNCTION QUESTIONS

A
142 www.redlion.net
WARNING: Disconnect all power to the unit before
installing Plug-in cards.
Adding Option Cards
The PAX and MPAX series meters can be fitted with up to three optional plug-
in cards. The details for each plug-in card can be reviewed in the specification
section below. Only one card from each function type can be installed at one time.
The function types include Setpoint Alarms (PAXCDS), Communications
(PAXCDC), and Analog Output (PAXCDL). The plug-in cards can be installed
initially or at a later date.
PAXI COMMUNICATION CARDS (PAXCDC)
A variety of communication protocols are available for the PAX and MPAX
series. Only one of these cards can be installed at a time. When programming
the unit via Crimson, a Windows®based program, the RS232 or RS485 Cards
must be used.
SERIAL COMMUNICATIONS CARD
Type: RS485 or RS232
Isolation To Sensor & User Input Commons: 500 Vrms for 1 min.
Working Voltage: 50 V. Not Isolated from all other commons.
Data: 7/8 bits
Baud: 300 to 19,200
Parity: no, odd or even
Bus Address: Selectable 0 to 99, Max. 32 meters per line (RS485)
Transmit Delay: Selectable for 2 to 50 msec or 50 to 100 msec (RS485)
DEVICENET™ CARD
Compatibility: Group 2 Server Only, not UCMM capable
Baud Rates: 12 5Kbaud, 250 Kbaud, and 500 Kbaud
Bus Interface: Phillips 82C250 or equivalent with MIS wiring protection per
DeviceNet™ Volume I Section 10.2.2.
Node Isolation: Bus powered, isolated node
Host Isolation: 500 Vrms for 1 minute (50 V working) between DeviceNet™
and meter input common.
MODBUS CARD
Type: RS485; RTU and ASCII MODBUS modes
Isolation To Sensor & User Input Commons: 500 Vrms for 1 minute.
Working Voltage: 50 V. Not isolated from all other commons.
Baud Rates: 300 to 38400.
Data: 7/8 bits
Parity: No, Odd, or Even
Addresses: 1 to 247.
Transmit Delay: Programmable; See Transmit Delay explanation.
PROFIBUS-DP CARD
Fieldbus Type: Profibus-DP as per EN 50170, implemented with Siemens
SPC3 ASIC
Conformance: PNO Certified Profibus-DP Slave Device
Baud Rates: Automatic baud rate detection in the range 9.6 Kbaud to 12 Mbaud
Station Address: 0 to 126, set by the master over the network. Address stored
in non-volatile memory.
Connection: 9-pin Female D-Sub connector
Network Isolation: 500 Vrms for 1 minute (50 V working) between Profibus
network and sensor and user input commons. Not isolated from all other
commons.
PROGRAMMING SOFTWARE
Crimson is a Windows®based program that allows configuration of the PAX
meter from a PC. Crimson offers standard drop-down menu commands, that
make it easy to program the PAX meter. The PAX program can then be saved in
a PC file for future use. A PAX serial plug-in card is required to program the
meter using the software.
SETPOINT CARDS (PAXCDS)
The PAX and MPAX series has 4 available setpoint alarm output plug-in
cards. Only one of these cards can be installed at a time. (Logic state of the
outputs can be reversed in the programming.) These plug-in cards include:
PAXCDS10 - Dual Relay, FORM-C, Normally open & closed
PAXCDS20 - Quad Relay, FORM-A, Normally open only
PAXCDS30 - Isolated quad sinking NPN open collector
PAXCDS40 - Isolated quad sourcing PNP open collector
DUAL RELAY CARD
Type: Two FORM-C relays
Isolation To Sensor & User Input Commons: 2000 Vrms for 1 min.
Working Voltage: 240 Vrms
Contact Rating:
One Relay Energized: 5 amps @ 120/240 VAC or 28 VDC (resistive load),
1/8 HP @120 VAC, inductive load
Total current with both relays energized not to exceed 5 amps
Life Expectancy: 100 K cycles min. at full load rating. External RC snubber
extends relay life for operation with inductive loads
Response Time: 5 msec. nominal with 3 msec. nominal release
Time Accuracy: Counter = ± 0.01% + 10 msec.
Rate = ± 0.01% + 20 msec.
QUAD RELAY CARD
Type: Four FORM-A relays
Isolation To Sensor & User Input Commons: 2300 Vrms for 1 min.
Working Voltage: 250 Vrms
Contact Rating:
One Relay Energized: 3 amps @ 250 VAC or 30 VDC (resistive load), 1/10
HP @120 VAC, inductive load
Total current with all four relays energized not to exceed 4 amps
Life Expectancy: 100K cycles min. at full load rating. External RC snubber
extends relay life for operation with inductive loads
Response Time: 5 msec. nominal with 3 msec. nominal release
Time Accuracy: Counter = ± 0.01% + 10 msec.
Rate = ± 0.01% + 20 msec.
QUAD SINKING OPEN COLLECTOR CARD
Type: Four isolated sinking NPN transistors.
Isolation To Sensor & User Input Commons: 500 Vrms for 1 min.
Working Voltage: 50 V. Not Isolated from all other commons.
Rating: 100 mA max @ VSAT = 0.7 V max. VMAX = 30 V
Response Time: Counter = 25 μsec; Rate = Low Update time
Time Accuracy: Counter = ± 0.01% + 10 msec.
Rate = ± 0.01% + 20 msec.
QUAD SOURCING OPEN COLLECTOR CARD
Type: Four isolated sourcing PNP transistors.
Isolation To Sensor & User Input Commons: 500 Vrms for 1 min.
Working Voltage: 50 V. Not Isolated from all other commons.
Rating: Internal supply: 24 VDC ± 10% , 30 mA max. total
External supply: 30 VDC max., 100 mA max. each output
Response Time: Counter = 25 μsec; Rate = Low Update time
Time Accuracy: Counter = ± 0.01% + 10 msec.
Rate = ± 0.01% + 20 msec.
PAXI LINEAR DC OUTPUT (PAXCDL)
Either a 0(4)-20 mA or 0-10 V retransmitted linear DC output is available
from the analog output plug-in card. The programmable output low and high
scaling can be based on various display values. Reverse slope output is possible
by reversing the scaling point positions.
PAXCDL10 - Retransmitted Analog Output Card
ANALOG OUTPUT CARD
Types: 0 to 20 mA, 4 to 20 mA or 0 to 10 VDC
Isolation To Sensor & User Input Commons: 500 Vrms for 1 min.
Working Voltage: 50 V. Not Isolated from all other commons.
Accuracy: 0.17% of FS (18 to 28°C); 0.4% of FS (0 to 50°C)
Resolution: 1/3500
Compliance: 10 VDC: 10 KΩload min., 20 mA: 500 Ωload max.
Response Time: 50 msec. max., 10 msec. typ.
OPTIONAL PLUG-IN OUTPUT CARDS
PAXCDC50 - Profibus-DPPAXCDC2C - RS232 Serial (Connector)
PAXCDC40 - Modbus (Terminal)PAXCDC1C - RS485 Serial (Connector)
PAXCDC4C - Modbus (Connector)PAXCDC20 - RS232 Serial (Terminal)
PAXCDC30 - DeviceNetPAXCDC10 - RS485 Serial (Terminal)

A
143
1-717-767-6511
1.0 INSTALLING THE METER
2.0 SETTING THE JUMPER AND DIP SWITCHES
2.1 SETTING THE JUMPER
The meter has one jumper for user input logic. When using the user inputs
this jumper must be set before applying power. The Main Circuit Board figure
shows the location of the jumper and DIP switch.
The user input jumper determines signal logic for the user inputs, when they
are used with user functions or for input signal direction. All user inputs are set
by this jumper.
2.2 SETTING THE INPUT DIP SWITCHES
The meter has six DIP switches for Input A and Input B terminal set-up that
must be set before applying power. NOTE: The PAXR only uses switches 1-3.
SWITCHES 3 and 6
HI Frequency: Removes damping capacitor and allows max. frequency.
LO Frequency: Adds a damping capacitor for switch contact bounce. Also
limits input frequency to 50 Hz and input pulse widths to 10 msec.
SWITCHES 2 and 5
SRC.: Adds internal 3.9 KΩpull-down resistor, 7.3 mA max. @ 28 VDC,
VMAX = 30 VDC.
SNK.: Adds internal 7.8 KΩpull-up resistor to +12 VDC, IMAX = 1.9 mA.
SWITCHES 1 and 4
LOGIC: Input trigger levels VIL = 1.5 V max.; VIH = 3.75 V min.
MAG: 200 mV peak input (must also have SRC on). Not recommended with
counting applications.
Main
Circuit
Board
INPUT SET-UP
DIP SWITCHES USER
INPUT
JUMPER
123456
SRC
SNK
To access the jumper and switches, remove the meter base from the meter
case by firmly squeezing and pulling back on the side rear finger tabs. This
should lower the latch below the case slot (which is located just in front of the
finger tabs). It is recommended to release the latch on one side, then start the
other side latch.
Warning: Exposed line voltage exists on the circuit boards. Remove
all power to the meter and load circuits before accessing inside of
the meter.
6
5
4
3
2
1
ON
Input B SRC.
Input B LO Freq.
Input B MAG.
Input A LO Freq.
Input A SRC.
Input A MAG.
SNK.
HI Freq.
Logic
HI Freq.
SNK.
Logic
Factory Setting
Installation
The PAX meets NEMA 4X/IP65 requirements when properly installed. The
unit is intended to be mounted into an enclosed panel. Prepare the panel cutout
to the dimensions shown. Remove the panel latch from the unit. Slide the panel
gasket over the rear of the unit to the back of the bezel. The unit should be
installed fully assembled. Insert
the unit into the panel cutout.
While holding the unit in place, push the panel latch over the rear of the unit
so that the tabs of the panel latch engage in the slots on the case. The panel
latch should be engaged in the farthest forward slot possible. To achieve a
proper seal, tighten the latch screws evenly until the unit is snug in the panel
(Torque to approximately 7 in-lbs [79N-cm]). Do not over-tighten the screws.
Installation Environment
The unit should be installed in a location that does not exceed the operating
temperature and provides good air circulation. Placing the unit near devices
that generate excessive heat should be avoided.
The bezel should only be cleaned with a soft cloth and neutral soap product.
Do NOT use solvents. Continuous exposure to direct sunlight may accelerate
the aging process of the bezel.
Do not use tools of any kind (screwdrivers, pens, pencils, etc.) to operate the
keypad of the unit.
PANEL CUT-OUT

A
144 www.redlion.net
The Plug-in cards are separately purchased optional cards that perform
specific functions. These cards plug into the main circuit board of the meter. The
Plug-in cards have many unique functions when used with the PAX. The
literature that comes with these cards should be discarded, unless it specifically
states in the Plug-in Card literature that the information applies to the PAX.
Note: The PAXC and PAXR only use the setpoint option card.
CAUTION: The Plug-in card and main circuit board contain
static sensitive components. Before handling the cards, discharge
static charges from your body by touching a grounded bare metal
object. Ideally, handle the cards at a static controlled clean
workstation. Also, only handle the cards by the edges. Dirt, oil or
other contaminants that may contact the cards can adversely
affect circuit operation.
To Install:
1. With the case open, locate the Plug-in card connector for the card type to be
installed. The types are keyed by position with different main circuit board
connector locations. When installing the card, hold the meter by the rear
terminals and not by the front display board.*
2. Install the Plug-in card by aligning the card terminals with the slot bay in the
rear cover. Be sure the connector is fully engaged and the tab on the Plug-in
card rests in the alignment slot on the display board.
3. Slide the meter base back into the case. Be sure the rear cover latches fully
into the case.
4. Apply the Plug-in card label to the bottom side of the meter in the designated
area. Do Not Cover the vents on the top surface of the meter. The surface of
the case must be clean for the label to adhere properly.
3.0 INSTALLING PLUG-INCARDS
Quad Sourcing Open Collector Output Card Supply Select
* If installing the Quad sourcing Plug-in Card (PAXCDS40), set the
jumper for internal or external supply operation before continuing.
TOP VIEW

A
145
1-717-767-6511
WIRING OVERVIEW
Electrical connections are made via screw-clamp terminals located on the
back of the meter. All conductors should conform to the meter’s voltage and
current ratings. All cabling should conform to appropriate standards of good
installation, local codes and regulations. It is recommended that the power
supplied to the meter (DC or AC) be protected by a fuse or circuit breaker.
When wiring the meter, compare the numbers embossed on the back of the
meter case against those shown in wiring drawings for proper wire position.
Strip the wire, leaving approximately 0.3" (7.5 mm) bare lead exposed (stranded
wires should be tinned with solder.) Insert the lead under the correct screw-
clamp terminal and tighten until the wire is secure. (Pull wire to verify
tightness.) Each terminal can accept up to one #14 AWG (2.55 mm) wire, two
#18 AWG (1.02 mm), or four #20 AWG (0.61 mm).
EMC INSTALLATION GUIDELINES
Although this meter is designed with a high degree of immunity to Electro-
Magnetic Interference (EMI), proper installation and wiring methods must be
followed to ensure compatibility in each application. The type of the electrical
noise, source or coupling method into the meter may be different for various
installations. The meter becomes more immune to EMI with fewer I/O
connections. Cable length, routing, and shield termination are very important
and can mean the difference between a successful or troublesome installation.
Listed below are some EMC guidelines for successful installation in an
industrial environment.
1. The meter should be mounted in a metal enclosure, which is properly
connected to protective earth.
2. Use shielded (screened) cables for all Signal and Control inputs. The shield
(screen) pigtail connection should be made as short as possible. The
connection point for the shield depends somewhat upon the application.
Listed below are the recommended methods of connecting the shield, in order
of their effectiveness.
a. Connect the shield only at the panel where the unit is mounted to earth
ground (protective earth).
b. Connect the shield to earth ground at both ends of the cable, usually when
the noise source frequency is above 1 MHz.
c. Connect the shield to common of the meter and leave the other end of the
shield unconnected and insulated from earth ground.
3. Never run Signal or Control cables in the same conduit or raceway with AC
power lines, conductors feeding motors, solenoids, SCR controls, and
heaters, etc. The cables should be ran in metal conduit that is properly
grounded. This is especially useful in applications where cable runs are long
and portable two-way radios are used in close proximity or if the installation
is near a commercial radio transmitter.
4. Signal or Control cables within an enclosure should be routed as far as possible
from contactors, control relays, transformers, and other noisy components.
5. In extremely high EMI environments, the use of external EMI suppression
devices, such as ferrite suppression cores, is effective. Install them on Signal
and Control cables as close to the unit as possible. Loop the cable through the
core several times or use multiple cores on each cable for additional
protection. Install line filters on the power input cable to the unit to suppress
power line interference. Install them near the power entry point of the
enclosure. The following EMI suppression devices (or equivalent) are
recommended:
Ferrite Suppression Cores for signal and control cables:
Fair-Rite # 0443167251 (RLC# FCOR0000)
TDK # ZCAT3035-1330A
Steward # 28B2029-0A0
Line Filters for input power cables:
Schaffner # FN610-1/07 (RLC# LFIL0000)
Schaffner # FN670-1.8/07
Corcom # 1 VR3
Note: Reference manufacturer’s instructions when installing a line filter.
6. Long cable runs are more susceptible to EMI pickup than short cable runs.
Therefore, keep cable runs as short as possible.
7. Switching of inductive loads produces high EMI. Use of snubbers across
inductive loads suppresses EMI.
Snubber: RLC# SNUB0000.
4.0 WIRING THE METER
4.1 POWER WIRING
AC Power
Terminal 1: VAC
Terminal 2: VAC
DC Power
Terminal 1: +VDC
Terminal 2: -VDC
4.2 USER INPUT WIRING
Before connecting the wires, the User Input Logic Jumper should be verified for proper position. If User Input 1
and/or 2 are wired for quadrature or directional counting, an additional switching device should not be connected to that
User Input terminal. Only the appropriate User Input terminal has to be wired.
Sourcing Logic
Terminals 7-9:
+ VDC through external switching device
Terminal 10:
-VDC through external switching device
The user inputs of the meter are internally
pulled down to 0 V with 5.1 K resistance.
The input is active when a voltage greater
than 3.6 VDC is applied.
Sinking Logic
Terminals 7-9
Terminal 10
The user inputs of the meter are
internally pulled up to +12 V with 5.1 K
resistance. The input is active when it is
pulled low (<0 .9 V).
Connect external switching device between the
appropriate User Input terminal and User Comm.
}

A
146 www.redlion.net
4.3 INPUT WIRING
4.4 SETPOINT (ALARMS) WIRING
CAUTION: Sensor input common is NOT isolated from user input common. In order to preserve the safety of the meter application, the sensor input
common must be suitably isolated from hazardous live earth referenced voltage; or input common must be at protective earth ground potential. If not,
hazardous voltage may be present at the User Inputs and User Input Common terminals. Appropriate considerations must then be given to the potential
of the user input common with respect to earth ground; and the common of the isolated plug-in cards with respect to input common.
SETPOINT PLUG-IN CARD TERMINALS
SINKING OUTPUT LOGIC CARD
SOURCING OUTPUT LOGIC CARD
AC Inputs From Tach Generators, Etc.
Input A
Two Wire Proximity, Current Source
Input A
Magnetic Pickup Input A
Current Sourcing Output
Input A
Interfacing With TTL
Input A
Current Sinking Output
Input A
Switch or Isolated Transistor; Current Sink
Input A
Current Sink Output; Quad/Direction
Single Counter A
Switch or Isolated Transistor; Current Source
Input A
Switch position is application dependent.
Emitter Follower; Current Source
Input A
Current Sink Output; Quad/Direction
Counter A
& Rate B
Counter A &
Counter B
Current Sink Output; Quad/Direction
If you are wiring Input B, connect signal to Terminal 6 instead of 5, and set DIP switches 4, 5, and 6 to the positions shown for 1, 2, and 3.
If using single Counter B, then wire signal to 6,
and Quad/Direction to 8. Set switch positions
4, 5, and 6 as shown for 1, 2, and 3.
User Input Jumper
in Sink Position
User Input Jumper
in Sink Position
Shaded areas not recommended for counting applications.

A
147
1-717-767-6511
RS232 Communications
RS232 is intended to allow two devices to communicate over distances up to
50 feet. Data Terminal Equipment (DTE) transmits data on the Transmitted Data
(TXD) line and receives data on the Received Data (RXD) line. Data Computer
Equipment (DCE) receives data on the TXD line and transmits data on the RXD
line. The PAX emulates a DTE. If the other device connected to the meter also
emulates a DTE, the TXD and RXD lines must be interchanged for
communications to take place. This is known as a null modem connection. Most
printers emulate a DCE device while most computers emulate a DTE device.
Some devices cannot accept more than two or three characters in succession
without a pause in between. In these cases, the meter employs a busy function.
As the meter begins to transmit data, the RXD line (RS232) is monitored to
determine if the receiving device is “busy”. The receiving device asserts that it
is busy by setting the RXD line to a space condition (logic 0). The meter then
suspends transmission until the RXD line is released by the receiving device.
RS485 Communications
The RS485 communication standard allows the connection of up to 32
devices on a single pair of wires, distances up to 4,000 ft. and data rates as high
as 10M baud (the PAX is limited to 19.2k baud). The same pair of wires is used
to both transmit and receive data. RS485 is therefore always half-duplex, that is,
data cannot be received and transmitted simultaneously.
12
12
B(-)
33K
33K
33K
33K
+5V
+5V
Transmit
Transmit
Enable
Enable
PAX METER
PAX METER
RECEIVING DEVICE
RECEIVING DEVICE
A
(+)
(+)
COMM.
COMM. *
NC
NC
*
OPTIONAL
OPTIONAL
13
13
14
14
15
15
Terminal Block Connection Figure
Terminal Block Connection Figure
ANALOG OPTION CARD FIELD TERMINALS
5.0 REVIEWING THE FRONT BUTTONS AND DISPLAY
* Counters B, and C are locked out in Factory Settings (PAXC and PAXI only).
** Factory setting for the F1, and F2 keys is NO mode.
*** Factory setting for the RST key is (Reset Display).
Advances digit location in parameter valuesReset (Function key) ***RST
Decrement selected parameter value or selectionsFunction key 2; hold for 3 seconds for Second Function 2 **F2W
Increment selected parameter value or selectionsFunction key 1; hold for 3 seconds for Second Function 1 **F1V
Store selected parameter and index to next parameterAccess Programming ModePAR
Quit programming and return to Display ModeIndex display through the selected displays.DSP
PROGRAMMING MODE OPERATIONDISPLAY MODE OPERATIONKEY
4.5 PAXI SERIAL COMMUNICATION WIRING
4.6 PAXI ANALOG OUTPUT WIRING
4.7 PAXI PRESCALER OUTPUT WIRING
Extended Comms Connection Figure
Extended Comms Connection Figure

A
148 www.redlion.net
PROGRAMMING MODE ENTRY (PAR KEY)
The meter normally operates in the Display Mode. No parameters can be
programmed in this mode. The Programming Mode is entered by pressing the
PAR key. If it is not accessible then it is locked by either a security code, or a
hardware lock.
Two types of programming modes are available. Quick Programming Mode
permits only certain parameters to be viewed and/or modified. All meter
functions continue to operate except the front panel keys change to
Programming Mode Operations. Quick Programming Mode is configured in
Module 3. Full Programming Mode permits all parameters to be viewed and
modified. In this mode, incoming counts may not be recognized correctly, the
front panel keys change to Programming Mode Operations and certain user
input functions are disabled. Throughout this document, Programming Mode
(without Quick in front) always refers to “Full” Programming.
MODULE ENTRY (ARROW & PAR KEYS)
The Programming Menu is organized into nine modules. These modules group
together parameters that are related in function. The display will alternate between
and the present module. The arrow keys (F1Sand F2T) are used to select
the desired module. The displayed module is entered by pressing the PAR key.
MODULE MENU (PAR KEY)
Each module has a separate module menu (which is shown at the start of each
module discussion). The PAR key is pressed to advance to a particular parameter
to be changed, without changing the programming of preceding parameters.
After completing a module, the display will return to . Programming may
continue by accessing additional modules.
SELECTION / VALUE ENTRY (ARROW & PAR KEYS)
For each parameter, the display alternates between the present parameter and
the selections/value for that parameter. The arrow keys (F1Sand F2T) are used
to move through the selections/values for that parameter. Pressing the PAR key,
stores and activates the displayed selection/value. This also advances the meter
to the next parameter.
For numeric values, the RST key may be used to select a specific digit to be
changed. Once a digit is selected, the arrow keys are used to increment or
decrement that digit to the desired number.
PROGRAMMING MODE EXIT (DSP KEY or at PAR KEY)
The Programming Mode is exited by pressing the DSP key (from anywhere
in the Programming Mode) or the PAR key (with displayed). This will
commit any stored parameter changes to memory and return the meter to the
Display Mode. If a parameter was just changed, the PAR key should be pressed
to store the change before pressing the DSP key. (If power loss occurs before
returning to the Display Mode, verify recent parameter changes.)
PROGRAMMING TIPS
It is recommended to start with Module 1 for counting and Module 4 for rate.
If lost or confused while programming, press the DSP key and start over. When
programming is complete, it is recommended to record the parameter
programming on the Parameter User Chart and lock out parameter
programming with a user input or lock-out code.
FACTORY SETTINGS
Factory Settings may be completely restored in Module 9. This is a good
starting point for programming problems. Most parameters can be left at their
Factory Settings without affecting basic start-up. These parameters are
identified throughout the module explanations.
ALTERNATING SELECTION DISPLAY
In the explanation of the modules, the following dual display with arrows will
appear. This is used to illustrate the display alternating between the parameter
on top and the parameter’s Factory Setting on the bottom. In most cases,
selections and values for the parameter will be listed on the right.
6.0 PROGRAMMING THE METER
OVERVIEW
PROGRAMMING MENU
Indicates Program Mode Alternating Display
Factory Settings are shown.
ª
«
Parameter
Selection/Value
Module 1 is the programming for Counter A, Counter B and the Prescaler Output. Counter B parameters follow the Prescaler parameters. For
maximum input frequency, the counters should be set to mode NONE and the Prescaler to NO when they are not in use. When set to NONE
or NO, the remaining related parameters are not accessible. A corresponding annunciator indicates the counter being shown in the Display
Mode. An Exchange Parameter Lists feature for scale factors and count load values is explained in Module 2.
PARAMETER MENU
x = Counter A or Counter B
6.1 MODULE 1 - COUNT A & B INPUT PARAMETERS ()
Shaded areas represent program access that is model dependent.
PAXC & I

A
149
1-717-767-6511
PAXI: PRESCALER OUTPUT ENABLE *
PAXI: PRESCALER SCALE VALUE *
ª
«
COUNTER A OPERATING MODE
NONE cnt cntud dcntud quAd1 quAd2
quAd4 dquAd1 dquAd2 cnt2 cntud2 dctud2
Select the operating mode for Counter A.
ª
«
COUNTER A RESET ACTION
When Counter A is reset, it returns to zero or Counter A count load value.
This reset action affects all Counter A resets, except the Setpoint Counter Auto
Reset in Module 6.
ª
«
COUNTER A DECIMAL POSITION
This selects the decimal point position for Counter A and any setpoint value
assigned to Counter A. The selection will also affect Counter A scale factor
calculations.
ª
«
COUNTER A SCALE FACTOR
The number of input counts is multiplied by the scale factor and the scale
multiplier to obtain the desired process value. A scale factor of 1.00000 will
result in the display of the actual number of input counts. (Details on scaling
calculations are explained at the end of this section.)
to
Adds Input A rising and falling edges if User 1 is
high. Subtracts Input A rising and falling edge if
User 1 is low.
Count X2
w/direction
dctud2
Adds Input A rising and falling edges if Input B is
high. Subtracts Input A rising and falling edge if
Input B is low.
Count X2
w/direction
cntud2
Adds Input A rising and falling edges.Count X2
cnt2
Adds Input A rising edge when User 1 is high and
Input A falling edge when User 1 is low. Subtracts
Input A falling edge when User 1 is high and Input A
rising edge when User 1 is low.
Quad X2
dquAd2
Adds Input A rising edge when User 1 is high.
Subtracts Input A falling edge when User 1 is high.
Quad X1
dquAd1
Adds Input A rising edge when Input B is high, Input
A falling edge when Input B is low, Input B rising
edge when Input A is low, and Input B falling edge
when Input A is high. Subtracts Input A falling edge
when Input B is high, Input A rising edge when Input
B is low, Input B rising edge when Input A is high,
and Input B falling edge when Input A is low.
Quad X4
quAd4
Adds Input A rising edge when Input B is high and
Input A falling edge when Input B is low. Subtracts
Input A falling edge when Input B is high and Input A
rising edge when Input B is low.
Quad X2
quAd2
Adds Input A rising edge when Input B is high.
Subtracts Input A falling edge when Input B is high.
Quad X1
quAd1
Adds Input A falling edge if User 1 is high. Subtracts
Input A falling edge if User 1 is low.
Count X1
w/direction
dcntud
Adds Input A falling edge if Input B is high.
Subtracts Input A falling edge if Input B is low.
Count X1
w/direction
cntud
Adds Input A falling edge.Count X1
cnt
Does not count.
NONE
DESCRIPTIONMODESELECTION
ª
«
COUNTER A SCALE MULTIPLIER *
The number of input counts is multiplied by the scale multiplier and the scale
factor to obtain the desired process value. A scale multiplier of 1 will result in
only the scale factor affecting the display. (Details on scaling calculations are
explained at the end of this section.)
ª
«
COUNTER A COUNT LOAD VALUE *
When reset to count load action is selected, Counter A will reset to this value.
ª
«
COUNTER A RESET POWER-UP *
Counter A may be programmed to reset at each meter power-up.
ª
«
ª
«
This enables the prescaler output. The prescaler output is useful for providing
a lower frequency scaled pulse train to a PLC or another external counter. On
each falling edge of Input A, the prescaler output register increments by the
prescaler scale value (). When the register equals or exceeds 1.0000, a
pulse is output and the register is lowered by 1.0000. The prescaler register is
reset to zero whenever Counter A is reset (except for Setpoint Counter Auto
Reset). (See Prescaler Output Figure.)
to
to
The prescaler output frequency is the Input A frequency times the prescaler
scale value.
* Factory Setting can be used without affecting basic start-up.

A
150 www.redlion.net
ª
«
COUNTER B OPERATING MODE
Select the operating mode for Counter B.
ª
«
COUNTER B RESET ACTION
When Counter B is reset, it returns to zero or Counter B count load value.
This reset action affects all Counter B resets, except the Setpoint Counter Auto
Reset Action in Module 6.
ª
«
COUNTER B DECIMAL POSITION
This selects the decimal point position for Counter B and any setpoint value
assigned to Counter B. The selection will also affect Counter B scale factor
calculations.
ª
«
COUNTER B SCALE FACTOR
The number of input counts is multiplied by the scale factor and the scale
multiplier to obtain the desired process value. A scale factor of 1.00000 will
result in the display of the actual number of input counts. (Details on scaling
calculations are explained at the end of this section.)
to
ª
«
COUNTER B SCALE MULTIPLIER *
The number of input counts is multiplied by the scale multiplier and the scale
factor to obtain the desired process value. A scale multiplier of 1 will result in
only the scale factor affecting the display. (Details on scaling calculations are
explained at the end of this section.)
ª
«
COUNTER B COUNT LOAD VALUE *
When reset to count load action is selected, Counter B will reset to this value.
to
dctud2cnt2dquAd2
dquAd1dcntudcntNONE
Adds Input B rising and falling edges if User 2 is
high. Subtracts Input B rising and falling edge if
User 2 is low.
Count X2
w/direction
dctud2
Adds Input B rising and falling edges.Count X2
cnt2
Adds Input B rising edge when User 2 is high and
Input B falling edge when User 2 is low. Subtracts
Input B falling edge when User 2 is high and Input B
rising edge when User 2 is low.
Quad X2
dquAd2
Adds Input B rising edge when User 2 is high.
Subtracts Input B falling edge when User 2 is high.
Quad X1
dquAd1
Adds Input B falling edge if User 2 is high. Subtracts
Input B falling edge if User 2 is low.
Count X1
w/direction
dcntud
Adds Input B falling edge.Count X1
cnt
Does not count.
NONE
DESCRIPTIONMODESELECTION
SCALING CALCULATIONS
Each counter has the ability to scale an input signal to a desired display
value. This is accomplished by the counter mode (x-), scale factor (x),
scale multiplier (x) and decimal point (x). The scale factor is
calculated using:
SF (x) = Desired Display Decimal DDD
(Number of pulses per ‘single’ unit x CM x SM)
Where:
Number of pulses per ‘single’ unit: pulses per unit generated by the
process (i.e. # of pulses per foot)
CM: Counter Mode(x-) times factor of the mode 1,2 or 4.
SM: Scale Multiplier (x) selection of 1, 0.1 or 0.01.
Example:
1. Show feet to the hundredths (0.00) with 100 pulses per foot:
Scale Factor would be 100 / (100 x 1 x 1) = 1
(In this case, the scale multiplier and counter mode factor are 1)
2. Show feet with 120 pulses per foot: Scale Factor would be 1 / (120 x 1 x 1)
= 0.0083333. (In this case, the scale multiplier of 0.01 could be used: 1 / (120
x 1 x 0.01) = 0.83333 or show to hundredths (0.00): 100 / (120 x 1 x 1) =
0.8333.)
General Rules on Scaling
1. It is recommended that, the scale factor be as close as possible to, but not
exceeding 1.00000. This can be accomplished by increasing or decreasing
the counter decimal point position, using the scale multiplier, or selecting a
different count mode.
2. To double the number of pulses per unit, use counter modes direction X2 or
quad X2. To increase it by four times, use counter mode quad X4. Using
these modes will decrease the maximum input frequency.
3. A scale factor greater than 1.00000 will cause Counter display rounding. In
this case, digit jumps could be caused by the internal count register rounding
the display. The precision of a counter application cannot be improved by
using a scale factor greater than 1. 00000.
4. The number of pulses per single unit must be greater than or equal to the
DDD value for the scale factor to be less than or equal to one.
5. Lowering the scale factor can be accomplished by lowering the counter
decimal position. (Example: 100 (Hundredths)/10 pulses = 10.000 lowering
to 10 (Tenths)/10 = 1.000.)
ª
«
COUNTER B RESET POWER-UP *
Counter B may be programmed to reset at each meter power-up.
* Factory Setting can be used without affecting basic start-up.
8 DIGIT COUNT VALUES
Any counter display value below -99999 or above 999999 (less decimal
point) will consist of a two part display. This display alternates between the
least 6 significant digits and the remaining most significant digits beginning
with “” in the display. If the display exceeds ± 99999999 the display will roll
to zero and continue counting. Outputs cannot be set to counter values above 6
digits. The annunciator, indicating the counter being displayed, will flash when
the value is above 6 digits.
Hundred Thousandths0.00000100000
Ten Thousandths0.000010000
Thousandths0.0001000
Hundredths0.00100
Tenths0.010
None01
Counter Decimal Selection
x
Desired
Display
Decimal DDD

A
151
1-717-767-6511
PAXI: PRINT REQUEST
PAXI: PRINT REQUEST AND RESET DISPLAYS
6.2 MODULE 2 - USER INPUT AND FRONT PANEL FUNCTION KEY
PARAMETERS ()
PARAMETER MENU
ª
«
ª
«
NO FUNCTION
With this selection, NO function is performed. This is the factory setting for
all user inputs and function keys except the Reset (RST) Key.
NOTE: When a user input is used to accept a quad or directional input
signal, then that user input should be programmed for NO function.
ª
«
ª
«
RESET DISPLAY
When activated (momentary action), the shown display is reset. This is the
factory setting for the Reset (RST) Key.
ª
«
ª
«
EXCHANGE PARAMETER LISTS
ª
«
ª
«
Two lists of values are available for , , , , , ,
, , , . The two lists are named and .
If a user input is used to select the list then is selected when the user
input is not active and and is selected when the user input is active,
(maintained action). If a front panel key is used to select the list then the list will
toggle for each key press, (momentary action). The meter will suspend ALL
operations for approximately 1 msec. while the new values are loaded. The
display will only indicate which list is active when the list is changed or when
entering any Programming Mode.
To program the values for and , first complete the
programming of all the parameters. Exit programming and switch to the other
list. Re-enter programming and enter the values for , , , ,
, , , , , . If any other parameters are
changed then the other list values must be reprogrammed.
ª
«
PROGRAMMING MODE LOCK-OUT
Programming Mode is locked-out, as long as activated
(maintained action). In Module 3, certain parameters can
be setup where they are still accessible during
Programming Mode Lockout. A security code can be configured to allow
complete programming access during user input lockout. Function keys should
not be programmed for .
The meter issues a block print through the serial port when activated. The
data transmitted during the print request is configured in Module 7. If the user
input is still active after the transmission is complete (about 100 msec.), an
additional transmission will occur. Only one transmission will take place with
each function key depression. This selection will only function when a serial
communications Plug-in card is installed in the meter.
Module 2 is the programming for rear terminal user inputs and front panel
function keys.
Three rear terminal user inputs are individually programmable to perform
specific meter control functions. While in the Display Mode, the function is
executed when the user input transitions to the active state. (Refer to the user
input specifications for active state response times.) Certain user input functions
are disabled in “full” Programming Mode.
Three front panel function F1, F2 and RST keys are also individually
programmable to perform specific meter control functions. While in the Display
Mode, the primary function is executed when the key is pressed. Holding the
F1 and F2 function keys for three seconds executes a secondary function. It is
possible to program a secondary function without a primary function. The front
panel key functions are disabled in both Programming Modes.
In most cases, if more than one user input and/or function key is programmed
for the same function, the maintained (level trigger) actions will be performed
while at least one of those user inputs or function keys are activated. The
momentary (edge trigger) actions are performed every time any of those user
inputs or function keys transition to the active state. All functions are available
to both user inputs and function keys.
Some of the user functions have a sublist of parameters. The sublist is
accessed when PAR is pressed at the listed function. The function will only be
performed for the parameters entered as . If a user input or function key is
configured for a function with a sublist, then that sublist will need to be scrolled
through each time to access the following user inputs or function keys
parameters.
ª
«
ADVANCE DISPLAY
When activated (momentary action), the display advances to the next display
that is not locked out from the Display Mode.
ª
«
Shaded parameters do not apply to the PAXR.
ª
«
ª
«
The meter issues a block print through the serial port when activated just like
the Print Request function. In addition, when activated (momentary action), the
meter performs a reset of the displays configured as . The print aspect of this
action only functions when a serial communication plug-in card is installed.
The reset action functions regardless.
DISPLAY DESCRIPTION FACTORY
A CNt Counter A NO
b CNt Counter B NO
C CNt Counter C NO
HI Maximum NO
LO Minimum NO

A
152 www.redlion.net
PAXR: MAINTAINED (LEVEL) RESET AND INHIBIT
PAXR: MOMENTARY (EDGE) RESET
ª
«
ª
«
MAINTAINED (LEVEL) RESET AND INHIBIT
The meter performs a reset and inhibits the displays configured as , as
long as activated (maintained action).
ª
«
ª
«
INHIBIT
The meter inhibits the displays configured as , as long as activated
(maintained action).
NO
Minimum
LO
NO
Maximum
HI
NO
Counter C
C CNt
NO
Counter B
b CNt
NO
Counter A
A CNt
FACTORYDESCRIPTIONDISPLAY
ª
«
ª
«
MOMENTARY (EDGE) RESET
When activated (momentary action), the meter resets the displays configured as
. (Momentary resets improve max. input frequencies over maintained resets.)
NO
Minimum
LO
NO
Maximum
HI
NO
Counter C
C CNt
NO
Counter B
b CNt
NO
Counter A
A CNt
FACTORYDESCRIPTIONDISPLAY
NO
Minimum
LO
NO
Maximum
HI
NO
Counter C
C CNt
NO
Counter B
b CNt
NO
Counter A
A CNt
FACTORYDESCRIPTIONDISPLAY
ª
«
ª
«
STORE DISPLAY
The meter holds (freeze) the displays configured as , as long as activated
(maintained action). Internally the counters and max. and min. values continue to
update.
ª
«
ª
«
DEACTIVATE SETPOINT MAINTAINED (LEVEL)
The meter deactivates the setpoints configured as , as long as activated
(maintained action). This action only functions with a Setpoint card installed.
ª
«
ª
«
DEACTIVATE SETPOINT MOMENTARY (EDGE)
When activated (momentary action), the meter deactivates the setpoints
configured as . This action only functions with a Setpoint card installed.
ª
«
ª
«
HOLD SETPOINT STATE
The meter holds the state of the setpoints configured as , as long as
activated (maintained action). This action only functions with a Setpoint plug-in
card installed.
NO
Minimum
LO
NO
Maximum
HI
NO
Counter C
C CNt
NO
Counter B
b CNt
NO
Counter A
A CNt
FACTORYDESCRIPTIONDISPLAY
ª
«
ª
«
ACTIVATE SETPOINT MOMENTARY (EDGE)
When activated (momentary action), the meter activates the setpoints
configured as . This action only functions with a Setpoint card installed.
NO
Setpoint 4
SP-4
NO
Setpoint 3
SP-3
NO
Setpoint 2
SP-2
NO
Setpoint 1
SP-1
FACTORYDESCRIPTIONDISPLAY
When activated (momentary action), the display intensity changes to the next
intensity level (of 4). The four levels correspond to Display Intensity Level
() settings of 0, 3, 8 & 15. The intensity level, when changed via the User
Input/ Function Key, is not retained at power-down, unless Quick Programming
or Full Programming mode is entered and exited. The meter will power-up at the
last saved intensity level.
ª
«
ª
«
CHANGE DISPLAY INTENSITY LEVEL
ª
«
ª
«
ACTIVATE SETPOINT MAINTAINED (LEVEL)
The meter activates the setpoints configured as , as long as activated
(maintained action). This action only functions with a Setpoint card installed.
DISPLAY DESCRIPTION FACTORY
SP-1 Setpoint 1 NO
SP-2 Setpoint 2 NO
SP-3 Setpoint 3 NO
SP-4 Setpoint 4 NO
DISPLAY DESCRIPTION FACTORY
SP-1 Setpoint 1 NO
SP-2 Setpoint 2 NO
SP-3 Setpoint 3 NO
SP-4 Setpoint 4 NO
NO
Setpoint 4
SP-4
NO
Setpoint 3
SP-3
NO
Setpoint 2
SP-2
NO
Setpoint 1
SP-1
FACTORYDESCRIPTIONDISPLAY
NO
Setpoint 4
SP-4
NO
Setpoint 3
SP-3
NO
Setpoint 2
SP-2
NO
Setpoint 1
SP-1
FACTORYDESCRIPTIONDISPLAY
ª
«
ª
«
The meter performs a reset and inhibits the displays configured as , as
long as activated (maintained action).
DISPLAY DESCRIPTION FACTORY
HI Maximum NO
LO Minimum NO
ª
«
ª
«
When activated (momentary action), the meter resets the displays configured as
. (Momentary resets improve max. input frequencies over maintained resets.)
DISPLAY DESCRIPTION FACTORY
HI Maximum NO
LO Minimum NO

A
153
1-717-767-6511
6.3 MODULE 3 - DISPLAY AND PROGRAM LOCK-OUT
PARAMETERS ()
PARAMETER MENU
x = Counter A , Counter B, and then Counter C
n = Setpoints 1 to 4
Module 3 is the programming for Display lock-out and “Full” and “Quick”
Program lock-out.
When in the Display Mode, the available displays can be read consecutively
by repeatedly pressing the DSP key. An annunciator indicates the display being
shown. These displays can be locked from being visible. It is recommended that
the display be set to when the corresponding function is not used.
“Full” Programming Mode permits all parameters to be viewed and
modified. This Programming Mode can be locked with a security code and/or
user input. When locked and the PAR key is pressed, the meter enters a Quick
Programming Mode. In this mode, setpoint, count load and scale factor values
can still be read and/or changed per the selections below. The Display Intensity
Level () parameter also appears whenever Quick Programming Mode is
enabled, and the security code is greater than zero.
ª
«
COUNTER A B C DISPLAY LOCK-OUT *
RATE DISPLAY LOCK-OUT *
MAX. MIN. DISPLAY LOCK-OUT *
These displays can be programmed for or .
ª
«
ª
«
ª
«
ª
«
ª
«
to
These displays can be programmed for , , or .
The setpoint displays can be programmed for , , or (See the
following table). Accessible only with the Setpoint Plug-in card installed.
ª
«
COUNT LOAD A B C ACCESS LOCK-OUT *
ª
«
ª
«
The Scale Factor values can be programmed for , , or .
ª
«
SCALE FACTOR A B C ACCESS LOCK-OUT *
ª
«
Entry of a non-zero value will cause the prompt to appear when trying to
access the “Full” Programming Mode. Access will only be allowed after entering
a matching security code or universal code of . With this lock-out, a user input
would not have to be configured for Program Lock-out. However, this lock-out is
overridden by an inactive user input configured for Program Lock-out.
SECURITY CODE *
ª
«
ª
«
ª
«
SETPOINT 1 to 4 ACCESS LOCK-OUT *
ª
«
ª
«
ª
«
* Factory Setting can be used without affecting basic start-up.
PROGRAMMING MODE ACCESS
Throughout this document, Programming Mode (without Quick in front) always refers to “Full” Programming (all meter parameters are accessible).
Shaded areas represent program access that is model dependent.
Shaded areas are model dependent.
Not visible in Display Mode
Visible in Display Mode
DESCRIPTIONSELECTION
Not visible in Quick Programming Mode
Visible and changeable in Quick Programming Mode
Visible but not changeable in Quick Programming Mode
DESCRIPTIONSELECTION
SECURITY
CODE
USER INPUT
CONFIGURED
USER INPUT
STATE
WHEN PAR KEY IS
PRESSED “FULL” PROGRAMMING MODE ACCESS
0not ———— “Full” Programming Immediate access.
>0 not ———— Quick Programming w/Display Intensity After Quick Programming with correct code # at prompt.
>0 Active Quick Programming w/Display Intensity After Quick Programming with correct code # at prompt.
>0 Not Active “Full” Programming Immediate access.
0 Active Quick Programming No access
0 Not Active “Full” Programming Immediate access.

A
154 www.redlion.net
PAXI: RATE INPUT VALUE FOR SCALING POINT 1
PAXI: RATE DISPLAY VALUE FOR SCALING POINT 1
PAXI: LINEARIZER SEGMENTS
PAXI: RATE ASSIGNMENT
6.4 MODULE 4 - RATE INPUT PARAMETERS ()- PAXR & I
PARAMETER MENU
For measuring the rate (speed) of pulses on Input A, select . For Input
B select . This assignment is independent of the counting modes.
ª
«
The Low Update Time is the minimum amount of time between display
updates for the Rate display. Values of 0.1 and 0.2 seconds will update the
display correctly but may cause the display to appear unsteady. The factory
setting of 1.0 will update the display every second minimum.
LOW UPDATE TIME (DISPLAY UPDATE) *
ª
«
Module 4 is the programming for the Rate parameters. For maximum input
frequency, Rate assignment should be set to when not in use. When set to
, the remaining related parameters are not accessible. The Rate value is
shown with an annunciator of ‘’ in the Display Mode.
Note: For PAXR, is actually on the unit’s display and is
actually on the unit’s display.
to seconds
The High Update Time is the maximum amount of time before the Rate
display is forced to zero. (For more explanation, refer to Input Frequency
Calculation.) The High Update Time must be higher than the Low Update Time
and higher than the desired slowest readable speed (one divided by pulses per
second). The factory setting of 2.0, will force the display to zero for speeds
below 0.5 Hz or a pulse every 2 seconds.
HIGH UPDATE TIME (DISPLAY ZERO) *
ª
«
to seconds
This selects the decimal point position for Rate, Minimum and Maximum
rate displays and any setpoint value assigned to these displays. This parameter
does not affect rate scaling calculations.
RATE DECIMAL POSITION
ª
«
This parameter specifies the number of linear segments used for the Rate
Scaling function. Each linear segment has two scaling points which define the
upper and lower endpoints of the segment. The number of segments used
depends on the linearity of the process and the display accuracy required as
described below.
Linear Application – 2 Scaling Points
Linear processes use a single segment (two scaling points) to provide a linear
Rate display from 0 up to the maximum input frequency. For typical zero based
frequency measurements (0 Hz = 0 on display), leave (factory setting).
For non-zero based 2 scaling point applications, set , to enter both the
zero segment ( & ) and segment 1 ( & ).
ª
«
* Factory Setting can be used without affecting basic start-up.
Non-linear Application – Up to 10 Scaling Points
Non-linear processes may utilize up to nine segments (ten scaling points) to
provide a piece-wise linear approximation representing the non-linear function.
The Rate display will be linear throughout each individual segment (i.e.
between sequential scaling points). Thus, the greater the number of segments,
the greater the conformity accuracy. Several linearization equations are
available in the SFPAX software.
About Scaling Points
Each Scaling Point is specified by two programmable parameters: A desired
Rate Display Value () and a corresponding Rate Input Value ().
Scaling points are entered sequentially in ascending order of Rate Input Value.
Two scaling points must be programmed to define the upper and lower
endpoints of the first linear segment. Setting , automatically factory sets
the first scaling point to 0.0 for typical single segment, zero based applications.
When multiple segments are used, the upper scaling point for a given segment
becomes the lower scaling point for the next sequential segment. Thus, for each
additional segment used, only one additional scaling point must be programmed.
The following chart shows the Scaling Points, the corresponding Parameter
mnemonics, and the Factory Default Settings for each point.
Confirm the Rate Display Value for the first Scaling Point is 0. This parameter
is automatically set to 0 and does not appear when . (See Note)
Confirm the Rate Input Value for the first Scaling Point is 0.0. (See Note)
Note: For all linear and most non-linear applications, the Scaling Point 1
parameters (
and
) should be set to 0 and 0.0 respectively.
Consult the factory before using any non-zero values for Scaling Point 1. These
parameters are automatically set to 0 and do not appear when
.
ª
«
ª
«
RATE DISPLAY VALUE FOR SCALING POINT 2
Enter the desired Rate Display Value for the second Scaling Point by using
the arrow keys.
ª
«
to
to
to
to
09000.0
009000
109
08000.0
008000
98
07000.0
007000
87
06000.0
006000
76
05000.0
005000
65
04000.0
004000
54
03000.0
003000
43
02000.0
002000
32
01000.0
001000
21
INPUT
DEFAULT
00000.0
INPUT
PARAMETER
DISPLAY
DEFAULT
000000
DISPLAY
PARAMETER
1
SEGMENT SCALING
POINT

A
155
1-717-767-6511
RATE INPUT VALUE FOR SCALING POINT 2
Enter the corresponding Rate Input Value for the second Scaling Point by
using the arrow keys. Rate Input values for scaling points can be entered by
using the Key-in or the Applied method described below.
Key-in Method:
Enter the Rate Input value () that corresponds to the entered Rate
Display value () by pressing the F1 or F2 keys. This value is always in
pulses per second (Hz).
Applied Method:
Apply an external rate signal to the appropriate input terminals. At the Rate
Input Value () press and hold the F1 and F2 keys at the same time. The
applied input frequency (in Hz) will appear on the display. (To verify correct
reading wait for at least the length of the Low Update Time. Then press and
hold the F1 and F2 keys at the same time again. The new value should be ±
0.1% of the previous entered value.) Press PAR to enter the displayed
frequency as the Rate Input value. To prevent the displayed value from being
entered, press DSP. This will take the meter out of Programming Mode and the
previous Rate Input value will remain.
ª
«
Rounding values other than one round the Rate display to the nearest
increment selected (e.g. rounding of ‘5’ causes 122 to round to 120 and 123 to
round to 125). Rounding starts at the least significant digit of the Rate display.
RATE DISPLAY ROUND *
ª
«
The Low Cut Out value forces the Rate display to zero when the Rate display
falls below the value entered.
LOW CUT OUT *
ª
«
to
to
When the Rate value is above the present Maximum rate value for the
entered amount of time, the meter will capture that Rate value as the new
Maximum value. A delay time helps to avoid false captures of sudden short
spikes. Maximum detection will only function if Rate is assigned to Input A or
B. The Maximum rate value is shown with an annunciator of ‘’ in the display
and will continue to function independent of being displayed.
MAXIMUM CAPTURE DELAY TIME *
ª
«
to seconds
When the Rate value is below the present Minimum rate value for the entered
amount of time, the meter will capture that Rate value as the new Minimum
value. A delay time helps to avoid false captures of sudden short spikes.
Minimum detection will only function if Rate is assigned to Input A or B. The
Minimum rate value is shown with an annunciator of ‘’ in the display and will
continue to function independent of being displayed.
MINIMUM CAPTURE DELAY TIME *
ª
«
to seconds
RATE SCALING
To scale the Rate, enter a Scaling Display value with a corresponding Scaling
Input value. (The Display and Input values can be entered by Key-in or Applied
Methods.) These values are internally plotted to a Display value of 0 and Input
value of 0 Hz. A linear relationship is formed between these points to yield a
rate display value that corresponds to the incoming input signal rate. The PAXI
and PAXR are capable of showing a rate display value for any linear process.
KEY-IN SCALING METHOD CALCULATION
If a display value versus input signal (in pulses per second) is known, then
those values can be entered into Scaling Display (x) and Scaling Input
(x). No further calculations are needed.
If only the number of pulses per ‘single’ unit (i.e. # of pulses per foot) is
known, then it can be entered as the Scaling Input value and the Scaling Display
value will be entered as the following:
NOTES:
1. If # of pulse per unit is less than 10, then multiply both Input and Display
values by 10.
2. If # of pulse per unit is less than 1, then multiply both Input and Display
values by 100.
3. If the Display value is raised or lowered, then Input value must be raised
or lowered by the same proportion (i.e. Display value for per hour is
entered by a third less (1200) then Input value is a third less of # of pulses
per unit). The same is true if the Input value is raised or lowered, then
Display value must be raised or lowered by the same proportion.
4. Both values must be greater than 0.0.
EXAMPLE:
1. With 15.1 pulses per foot, show feet per minute in tenths. Scaling Display
= 60.0 Scaling Input = 15.1.
2. With 0.25 pulses per gallon, show whole gallons per hour. (To have greater
accuracy, multiply both Input and Display values by 10.) Scaling Display
= 36000 Scaling Input = 2.5.
INPUT FREQUENCY CALCULATION
The meter determines the input frequency by summing the number of falling
edges received during a sample period of time. The sample period begins on the
first falling edge. At this falling edge, the meter starts accumulating time
towards Low Update and High Update values. Also, the meter starts
accumulating the number of falling edges. When the time reaches the Low
Update Time value, the meter looks for one more falling edge to end the sample
period. If a falling edge occurs (before the High Update Time value is reached),
the Rate display will update to the new value and the next sample period will
start on the same edge. If the High Update Time value is reached (without
receiving a falling edge after reaching Low Update Time), then the sample
period will end but the Rate display will be forced to zero. The High Update
Time value must be greater than the Low Update Time value. Both values must
be greater than 0.0. The input frequency calculated during the sample period, is
then shown as a Rate value determined by either scaling method.
RATE DISPLAY EXCEEDED
If the rate of the input signal causes a display that exceeds the capacity of the
Rate display (5 digits, 99999), then the display will indicate an overflow
condition by showing “ ”. During this overflow condition, the Minimum
and Maximum rate values will stay at their values even during resets.
* Factory Setting can be used without affecting basic start-up.
# of pulses per unit3600Hour
# of pulses per unit60Minute
# of pulses per unit1Second
INPUT (x)DISPLAY (x)
RATE PER

A
156 www.redlion.net
PARAMETER MENU
ª
«
COUNTER C SCALE MULTIPLIER
The number of input counts is multiplied by the scale multiplier and the scale
factor to obtain the desired process value. A scale multiplier of 1 will result in
only the scale factor affecting the display. (Details on scaling calculations are
explained at the end of Module 1 section.)
ª
«
COUNTER C OPERATING MODE *
ª
«
COUNTER C COUNT LOAD VALUE
When reset to count load action is selected, Counter C will reset to this value.
ª
«
COUNTER C RESET POWER-UP *
Counter C may be programmed to reset at each meter power-up.
ª
«
COUNTER C RESET ACTION
When Counter C is reset, it returns to zero or Counter C count load value.
This reset action affects all Counter C resets, except the Setpoint Counter Auto
Reset Action in Module 6.
ª
«
COUNTER C DECIMAL POSITION
This selects the decimal point position for Counter C and any setpoint value
assigned to Counter C. The selection will also affect Counter C scale factor
calculations.
ª
«
COUNTER C SCALE FACTOR
The number of input counts is multiplied by the scale factor and the scale
multiplier to obtain the desired process value. A scale factor of 1.00000 will
result in the display of the actual number of input counts. For (Numeric
transmissions) modes of operation, the input signal is scaled directly. For
and modes of operation, the math is performed on the input signals
and then the result is scaled. To achieve correct results, both Input A and Input
B must provide the same amount of pulses per unit of measurement. (Details on
scaling calculations are explained at the end of Module 1 section.)
to
to
Module 5 is the programming for Counter C. For maximum input frequency,
the counter operating mode should be set to when not in use. When set to
the remaining related parameters are not accessible. The C annunciator
indicates that Counter C is being shown in the Display Mode. An Exchange
Parameter List feature for scale factor and count load values is explained in
Module 2.
Select the operating mode for Counter C.
* Factory Setting can be used without affecting basic start-up.
6.5 MODULE 5 - COUNTER C INPUT PARAMETERS ()
See Serial Communications for details.
SLAVE
Note: When using Add Ab or Sub Ab, Counter A, B and C must all be reset
at the same time for the math to be performed on the display values.
Counter C counts the incoming pulses from Counter A and B
inputs as per Counter A and B modes of operation and
subtracts the B counts from the A counts. The result is scaled
only according to Counter C parameters. (Example: If
Counter A is set for Count X1 mode and Counter B is set for
Count X2 mode, then Counter C will increment by 1 for each
pulse received on Input A and decrement by 2 for each pulse
received on Input B less any effects of scaling.)
Sub Ab
Counter C counts the incoming pulses from Counter A and B
inputs as per Counter A and B modes of operation. The result
is scaled only according to Counter C parameters. (Example:
If Counter A is set for Count X1 mode and Counter B is set
for Count X2 mode, then Counter C will increment by 1 for
each pulse received on Input A and increment by 2 for each
pulse received on Input B less any effects of scaling.)
Add Ab
Counter C counts the incoming pulses from Counter A input
as per Counter A mode of operation. The signal is scaled only
according to Counter C parameters.
A
Does not count.
NONE
(PAXI only)
PAXC & I

A
157
1-717-767-6511
6.6 MODULE 6 - SETPOINT (ALARM) PARAMETERS ()
PARAMETER MENU
Module 6 is the programming for the setpoint (alarms) output parameters. To have setpoint outputs, a setpoint Plug-in card needs to
be installed into the PAX (see Ordering Information). Depending on the card installed, there will be two or four setpoint outputs
available. This section replaces the bulletin that comes with the setpoint plug-in card. Please discard the separate literature when using
the Plug-in card with the Digital PAX. For maximum input frequency, unused Setpoints should be configured for action.
The setpoint assignment and the setpoint action determine certain setpoint feature availability. The chart below illustrates this.
SETPOINT PARAMETER AVAILABILITY
ª
«
SETPOINT SELECT
Select a setpoint (alarm output) to open the remaining module menu. (The
“” in the following parameters will reflect the chosen setpoint number.) After
the chosen setpoint is programmed, the display will default to . Select
the next setpoint to be programmed and continue the sequence for each setpoint.
Pressing PAR at will exit Module 6.
ª
«
SETPOINT ANNUNCIATORS*
disables the display of the setpoint annunciator. Normal () displays
the corresponding setpoint annunciator of an “on” alarm output. Reverse ()
displays the corresponding setpoint annunciator of an “off” alarm output.
flashes the display and the corresponding setpoint annunciator of an
“on” alarm output.
ª
«
SETPOINT OUTPUT LOGIC *
Normal () turns the output “on” when activated and “off” when
deactivated. Reverse () turns the output “off” when activated and “on” when
deactivated.
ª
«
SETPOINT POWER UP STATE *
will restore the output to the same state it was at before the meter was
powered down. will activate the output at power up. will deactivate the
output at power up.
* Factory Setting can be used without affecting basic start-up.
rSAE-n
rSAS-n
rSd-n
AUtO-n
tOUt-n
tON-n
tOFF-n
HyS-n
Stb-n
tyP-n
trC-n
YesNoYesNoNoNoReset When SPn+1 Deactivates
YesNoYesNoNoNoReset When SPn+1 Activates
YesNoYesNoNoNoReset With Display Reset
YesNoYesNoNoNoCounter Auto Reset
NoNoYesNoNoYesSetpoint Time Out
NoNoNoYesYe sYesSetpoint On Delay
NoNoNoNoYesNoSetpoint Off Delay
NoNoNoNoYesNoSetpoint Hysteresis
NoYesNoYesYesYesStandby Operation
NoYesNoYesYesYesBoundary Type
YesYesYesYesYesYesSetpoint Tracking
YesYesYesYesYesYesSetpoint Value
YesYesYesYesYesYesPower Up State
YesYesYesYesYesYesOutput Logic
YesYesYesYesYesYesAnnunciators
LATCH
BOUNDARY
TIMED OUT
LATCH
BOUNDARY
TIMED OUT
COUNTERRATE
DESCRIPTION
SP-n
SUP-n
OUt-n
LIt-n
PARAMETER

A
158 www.redlion.net
PAXC & I: COUNTER AUTO RESET *
PAXI & R: SETPOINT ON DELAY *
PAXI & R: SETPOINT OFF DELAY *
PAXI & R: SETPOINT HYSTERESIS *
PAXC & I: SETPOINT ASSIGNMENT
ª
«
SETPOINT ACTION
: When not using a setpoint, it should be set to (no action).
ª
«
Select the display that the setpoint is to be assigned.
ª
«
SETPOINT VALUE
Enter the desired setpoint value. Setpoint values can also be entered in the
Quick Programming Mode when the setpoint is configured as in Module 3.
(See Module 2 for Exchange Parameter Lists explanation.)
ª
«
SETPOINT TRACKING *
If a selection other than NO is chosen, then the value of the setpoint being
programmed (“n”) will track the entered selection’s value. Tracking means that
when the selection’s value is changed (in the Quick Programming Mode), the
“n” setpoint value will also change (or follow) by the same amount.
ª
«
SETPOINT BOUNDARY TYPE
activates the output when the assigned display value ( ) equals or
exceeds the setpoint value. activates the setpoint when the assigned display
value is less than or equal to the setpoint.
ª
«
SETPOINT STANDBY OPERATION *
Selecting will disable low acting setpoints at a power up until the display
value crosses into the alarm “off” area. Once in the alarm “off” area, the
setpoint will function according to the configured setpoint parameters.
to
With Timed Out action, the setpoint output activates when the
count value equals the setpoint value and deactivates after the
Time Out value. This action is not associated with Boundary
types.
tOUt
With boundary action, the setpoint output activates when the
count value is greater than or equal to (for = ) or less than
or equal to (for = ) the setpoint value. The setpoint output
will deactivate when the count value is less than (for = )
or greater than (for = ) the setpoint value.
bOUNd
With Latch action, the setpoint output activates when the count
value equals the setpoint value. The output remains active until
reset. This action is not associated with Boundary types.
LAtCH
For Counter Assignments:
With Timed Out action, the setpoint output cycles when the rate
value is greater than or equal to (for = ) or less than or
equal to (for = ) the setpoint value. The Setpoint Time Out
() and Setpoint On Delay () values determine the
cycling times.
tOUt
With Boundary action, the setpoint output activates when the
rate value is greater than or equal to (for = ) or less than
or equal to (for = ) the setpoint value. The setpoint output
will deactivate (Auto reset) as determined by the hysteresis
value.
bOUNd
With Latch action, the setpoint output activates when the rate
value is equal to the setpoint value. The setpoint output remains
active until reset. If after reset, the rate value is greater than or
equal to (for = ) or less than or equal to (for = ) the
setpoint value, the output will reactivate.
LAtCH
For Rate Assignments:
ª
«
The hysteresis value is added to (for = ), or subtracted from (for =
), the setpoint value to determine at what value to deactivate the associated
setpoint output. Hysteresis is only available for setpoints assigned to the Rate
with boundary action.
* Factory Setting can be used without affecting basic start-up.
to
ª
«
This is the amount of time the Rate display must meet the setpoint
deactivation requirements (below hysteresis for high acting and above
hysteresis for low acting) before the setpoint’s output deactivates.
to seconds
ª
«
This is the amount of time the Rate display must meet the setpoint activation
requirements (below setpoint for = and above setpoint for = ) before
the setpoint’s output activates. If the Rate Setpoint Action is Timed Out, this is
the amount of time the output is off during the on / off output cycling.
to seconds
ª
«
SETPOINT TIME OUT *
If the setpoint action is Timed Out and the setpoint is assigned to Rate, then
this is the amount of time the output is on during the on / off output cycling. If
the setpoint action is Timed Out and the setpoint is assigned to Count, then this
is the amount of time the output will activate once the count value equals the
setpoint value.
ª
«
This automatically resets the display value of the Setpoint Assignment (
) counter each time the setpoint value is reached. This reset may be different
than the Counter’s Reset Action (x) in Module 1 or 5.
to seconds
ZErOAE
CLdASZErOAS
CLdAE
SELECTION ACTION
NO No auto reset.
ZErOAS Reset to zero at the start of output activation.
CLdAS Reset to count load value at the start of output activation.
ZErOAE Reset to zero at the end of output activation. ( action only).
CLdAE Reset to count load value at the end of output activation. (
action only).

A
159
1-717-767-6511
PAXC & I: SETPOINT RESET WHEN SPn+1 DEACTIVATES *
PAXC & I:
SETPOINT RESET WHEN SPn+1 ACTIVATES *
ª
«
Select , so the setpoint output will deactivate (reset) when SPn +1
activates. (Example: SP1 deactivates when SP2 activates and SP4 when SP1
activates.) The last setpoint will wrap around to the first.
ª
«
Select , so the setpoint output will deactivate (reset) when SPn +1
activates and then times out (deactivates). This function may only be used if the
SPn+1 is programmed for Setpoint Action of . (Example SP1 deactivates
when SP2 is activated and then times out.) The last setpoint will wrap around
to the first.
* Factory Setting can be used without affecting basic start-up.
(For Reverse Action, The Alarm state is opposite.)
LOW ACTING WITH NO DELAY LOW ACTING WITH DELAY
HIGH ACTING WITH TIMEOUT LOW ACTING WITH TIMEOUT
HIGH ACTING WITH NO DELAY HIGH ACTING WITH DELAY
PAXC & I: SETPOINT RESET WITH DISPLAY RESET *
ª
«
Select , so the setpoint output will deactivate (reset) when the Setpoint
Assignment () counter display resets. The only exception is if the
assigned counter is reset by a Counter Auto reset generated by another setpoint.
PAXR & I: SETPOINT (ALARM) FIGURES FOR RATE

A
160 www.redlion.net
ª
«
BAUD RATE
Set the baud rate to match the other serial communications equipment on the
serial link. Normally, the baud rate is set to the highest value that all the serial
equipment are capable of transmitting and receiving.
ª
«
ABBREVIATED PRINTING
Select for full print or Command T transmissions (meter address,
parameter data and mnemonics) or for abbreviated print transmissions
(parameter data only). This will affect all the parameters selected in the print
options. (If the meter address is 00, it will not be sent during a full
transmission.)
ª
«
PRINT OPTIONS
- Enters the sub-menu to select the meter parameters to appear during a
print request. For each parameter in the sub-menu, select for that parameter
information to be sent during a print request or for that parameter
information not to be sent. A print request is sometimes referred to as a block
print because more than one parameter information (meter address, parameter
data and mnemonics) can be sent to a printer or computer as a block.
ª
«
DATA BIT
Select either 7 or 8 bit data word lengths. Set the word length to match the
other serial communications equipment on the serial link.
ª
«
PARITY BIT
Set the parity bit to match that of the other serial communications equipment
on the serial link. The meter ignores the parity when receiving data and sets the
parity bit for outgoing data. If no parity is selected with 7 bit word length, an
additional stop bit is used to force the frame size to 10 bits.
ª
«
METER UNIT ADDRESS
Enter the serial meter (node) address. With a single unit, an address is not
needed and a value of zero can be used. With multiple units (RS485
applications), a unique 2 digit address number must be assigned to each meter.
PARAMETER MENU
to
PARAMETER FACTORY MNEMONIC
A CNt Counter A yES CTA
b CNt Counter B NO CTB
C CNt Counter C NO CTC
rAtE Rate NO RTE
HILO Max. & Min. NO MIN MAX
SCFAC NO SFA SFB SFC
CNtLd NO LDA LDB LDC
*Setpoints are plug-in card dependent.
SPNt NO SP1 SP2 SP3 SP4
A B C Scale Factors
1 2 3 4 Setpoints *
DESCRIPTION
A B C Count Load
6.7 MODULE 7 - S
ERIAL
C
OMMUNICATIONS
P
ARAMETERS
()
PAXI ONLY
Module 7 is the programming module for the Serial Communications
Parameters. These parameters are used to match the serial settings of the PAXI
with those of the host computer or other serial device, such as a terminal or
printer. This programming module can only be accessed if an RS232 or RS485
Serial Communications card is installed.
This section also includes an explanation of the commands and formatting
required for communicating with the PAXI. In order to establish serial
communications, the user must have host software that can send and receive
ASCII characters. Red Lion's SFPAX software can be used for configuring the
PAXI (See Ordering Information). For serial hardware and wiring details, refer
to section 4.5 Serial Communication Wiring.
This section replaces the bulletin shipped with the RS232 and RS485 serial
communications plug-in cards. Discard the separate bulletin when using those
serial plug-in cards with the PAXI. Also, this section does NOT apply to the
DeviceNet, Modbus, or Profibus-DP communication cards. For details on the
operation of the Fieldbus cards, refer to the bulletin shipped with each card.

A
161
1-717-767-6511
SENDING SERIAL COMMANDS AND DATA
When sending commands to the meter, a string containing at least one
command character must be constructed. A command string consists of a
command character, a value identifier, numerical data (if writing data to the
meter) followed by a the command terminator character * or $. The <CR> is
also available as a terminator when Counter C is in the SLAVE mode.
Command Chart
Command String Construction
The command string must be constructed in a specific sequence. The meter
does not respond with an error message to invalid commands. The following
procedure details construction of a command string:
1. The first characters consist of the Node Address Specifier (N) followed by a
2 character address number. The address number of the meter is
programmable. If the node address is 0, this command and the node address
itself may be omitted. This is the only command that may be used in
conjunction with other commands.
2. After the optional address specifier, the next character is the command
character.
3. The next character is the Register ID. This identifies the register that the
command affects. The P command does not require a Register ID character.
It prints according to the selections made in print options.
4. If constructing a value change command (writing data), the numeric data is
sent next.
5. All command strings must be terminated with the string termination
characters *, $ or when Counter C is set for slave mode <CR>. The meter
does not begin processing the command string until this character is received.
See Timing Diagram figure for differences between terminating characters.
Register Identification Chart
1. Register Names are also used as Register Mnemonics during full transmission.
2. The registers associated with the P command are set up in Print Options (Module 7).
3. Unless otherwise specified, the Transmit Details apply to both T and V
Commands.
Command String Examples:
1. Address = 17, Write 350 to Setpoint 1
String: N17VM350$
2. Address = 5, Read Count A value, response time of 50 - 100 msec. min.
String: N05TA*
3. Address = 0, Reset Setpoint 4 output
String: RS*
Transmitting Data To the Meter
Numeric data sent to the meter must be limited to Transmit Details listed in
the Register Identification Chart. Leading zeros are ignored. Negative numbers
must have a minus sign. The meter ignores any decimal point and conforms the
number to the scaled resolution. (ie. The meter’s scaled decimal point position
is set for 0.0 and 25 is written to a register. The value of the register is now 2.5.
In this case, write a value of 250 to equal 25.0).
Note: Since the meter does not issue a reply to value change commands, follow
with a transmit value command for readback verification.
Transmitting Data From the Meter
Data is transmitted from the meter in response to either a transmit command
(T), a print block command (P) or User Function print request. The response
from the meter is either a full field transmission or an abbreviated transmission.
The meter response is established in Module 7.
Full Transmission
3These characters only appear in the last line of a block print.
The first two characters transmitted (bytes 1 and 2) are the unit address. If the
address assigned is 00, two spaces are substituted. A space (byte 3) follows the
unit address field. The next three characters (bytes 4 to 6) are the register
mnemonic. The numeric data is transmitted next.
The numeric field (bytes 7 to 18) is 12 characters long. When the requested
value exceeds eight digits for count values or five digits for rate values, an *
(used as an overflow character) replaces the space in byte 7. Byte 8 is always a
space. The remaining ten positions of this field (bytes 9 to 18) consist of a minus
sign (for negative values), a floating decimal point (if applicable), and eight
positions for the requested value. The data within bytes 9 to 18 is right-aligned
with leading spaces for any unfilled positions.
The end of the response string is terminated with <CR> (byte 19), and <LF>
(byte 20). When a block print is finished, an extra <SP> (byte 21), <CR> (byte
22), and <LF> (byte 23) are used to provide separation between the
transmissions.
Abbreviated Transmission
3These characters only appear in the last line of a block print.
The abbreviated response suppresses the address and register mnemonics,
leaving only the numeric part of the response.
Meter Response Examples:
1. Address = 17, full field response, Count A = 875
17 CTA 875 <CR><LF>
2. Address = 0, full field response, Setpoint 2 = -250.5
SP2 -250.5<CR><LF>
3. Address = 0, abbreviated response, Setpoint 2 = 250, last line of block print
250<CR><LF><SP><CR><LF>
Command Description Notes
NNode (Meter) Address
Specifier
Address a specific meter. Must be followed by
two digit node address. Not required when
address = 00.
TTransmit Value (read) Read a register from the meter. Must be
followed by register ID character.
VValue change (write)
Write to register of the meter. Must be
followed by register ID character and numeric
data.
RReset Reset a register or output. Must be followed
by register ID character
PBlock Print Request
(read)
Initiates a block print output. Registers are
defined in programming.
ID VALUE DESCRIPTION REGISTER
NAME 1TRANSMIT DETAILS 3
COMMAND 2
ACount A CTA 6 digit (V), 8 digit (T)
K
B
Count Load B
Count B
LDB
CTB
5 negative / 6 positive
6 digit (V), 8 digit (T)
L
C
Count Load C
Count C
LDC
CTC
5 negative / 6 positive
6 digit (V), 8 digit (T)
M
D
Setpoint 1
Rate
SP1
RTE
5 negative / 6 positive
5 digit, positive only
O
E
Setpoint 2
Min
SP2
MIN
5 negative / 6 positive
5 digit, positive only
Q
F
Setpoint 3
Max
SP3
MAX
5 negative / 6 positive
5 digit, positive only
S
G
Setpoint 4
Scale Factor A
SP4
SFA
5 negative / 6 positive
6 digit, positive only
U
H
Auto/Manual Register
Scale Factor B
MMR
SFB
0 - auto, 1 - manual
6 digit, positive only
W
I
Analog Output Register
Scale Factor C
AOR
SFC
0 - 4095 normalized
6 digit, positive only
X
J
Setpoint Register
Count Load A
SOR
LDA
0 - not active, 1 - active
5 negative / 6 positive
T, V, R
T, V
T, V, R
T, V
T, V, R
T, V
T, V, R
T, V, R
T, V, R
T, V, R
T, V, R
T, V
T, V
T, V
T, V
T, V
T, V
T, V
Byte Description
1-12 12 byte data field, 10 bytes for number, one byte for sign, one byte
for decimal point
13 <CR> (Carriage return)
14 <LF> (Line feed)
15 <SP> (Space)3
16 <CR> (Carriage return)3
17 <LF> (Line feed)3
T, V, R
<LF> (Line feed)3
23
<CR> (Carriage return)3
22
<SP> (Space)3
21
<LF> (Line feed)20
3 byte Register Mnemonic field4-6
<SP> (Space)3
12 byte numeric data field: 10 bytes for number, one byte for sign, one
byte for decimal point
7-18
2 byte Node (Meter) Address field [00-99]1, 2
<CR> (Carriage return)19
DescriptionByte

A
162 www.redlion.net
Auto/Manual Mode Register (MMR) ID: U
This register sets the controlling mode for the outputs. In Auto Mode (0) the
meter controls the setpoint and analog output. In Manual Mode (1) the outputs
are defined by the registers SOR and AOR. When transferring from auto mode
to manual mode, the meter holds the last output value (until the register is
changed by a write). Each output may be independently changed to auto or
manual. In a write command string (VU), any character besides 0 or 1 in a field
will not change the corresponding output mode.
U abcde
e = Analog Output
d = SP4
c = SP3
b = SP2
a = SP1
Example: VU00011 places SP4 and Analog in manual.
Analog Output Register (AOR) ID: W
This register stores the present signal value of the analog output. The range
of values of this register is 0 to 4095, which corresponds to the analog output
range per the following chart:
*Due to the absolute
accuracy rating and
resolution of the output
card, the actual output
signal may differ 0.15% FS
from the table values. The
output signal corresponds
to the range selected (0-20
mA, 4-20 mA or 0-10 V).
Writing to this register (VW) while the analog output is in the Manual Mode
causes the output signal level to update immediately to the value sent. While in
the Automatic Mode, this register may be written to, but it has no effect until the
analog output is placed in the manual mode. When in the Automatic Mode, the
meter controls the analog output signal level. Reading from this register (TW)
will show the present value of the analog output signal.
Example: VW2047 will result in an output of 10.000 mA, 12.000 mA or
5.000V depending on the range selected.
Setpoint Output Register (SOR) ID: X
This register stores the states of the setpoint outputs. Reading from this
register (TX) will show the present state of all the setpoint outputs. A “0” in the
setpoint location means the output is off and a “1” means the output is on.
X abcd
d = SP4
c = SP3
b = SP2
a = SP1
In Automatic Mode, the meter controls the setpoint output state. In Manual
Mode, writing to this register (VX) will change the output state. Sending any
character besides 0 or 1 in a field or if the corresponding output was not first in
manual mode, the corresponding output value will not change. (It is not
necessary to send least significant 0s.)
Example: VX10 will result in output 1 on and output 2 off.
10.00020.000
9.997519.996
5.00012.000
0.00254.004
0.0004.000
0-10V4-20 mA
20.0004095
19.9954094
10.0002047
Output Signal*
Register Value
0.0051
0.0000
0-20 mA
COUNTER C SLAVE COMMUNICATIONS
Counter C may be programmed for , to act as a serial slave display. By doing this, the carriage return <CR>
is added as a valid command terminator character for all serial command strings. The <CR> as a terminator may be
very useful for standard serial commands, even if Counter C is never displayed or sent a slave message. The $
terminator should not be used in the slave mode. If numeric values are not to be saved to EPROM then send the value
as a literal transmission with <CR> terminator.
The Counter C slave display is right aligned. It has a capacity of displaying six characters. When less than six
characters are received, blank spaces will be placed in front of the characters. If more than six characters are sent,
then only the last six are displayed. The meter has a 192 character buffer for the slave display. If more than 192
characters are sent, the additional characters are discarded until a terminator is received. Counter C processes
numeric and literal transmissions differently.
Numeric Transmissions
When a string that does not begin with #, T, V, P or R is received, the meter
processes it as a Numeric transmission. In this case, only the recognized numbers
and punctuation are displayed. All other characters in the string are discarded. If
a negative sign appears anywhere in the string the resulting number will be
negative. Only the most significant decimal point is retained. If no numerical
characters are received, then the numeric value will be zero. The numeric display
can be used for setpoint (boundary action only) and analog output functions.
When using this display for setpoint and analog output values, the decimal point
position must match the programming entered through the front panel. The
numeric value is retained in Counter C memory until another Numeric
transmission is received.
Recognized Numbers = 0, 1, 2, 3, 4, 5, 6, 7, 8, 9
Recognized Punctuation = period, comma, minus
Literal Transmissions
When a string that begins with # is received, the meter processes it as a Literal
transmission. In this case, any unrecognized characters will be replaced with a
space. A Literal display will replace a Numeric value in the Counter C display.
However, it will not remove a previous Numeric value from Counter C memory
or prevent the Counter C outputs from functioning with the Numeric value.
Literal transmissions are only possible when using RS232 or RS485 cards.
Recognized Characters = a, b, c, d, e, f, g, h, i, j, l, n, o, p, q, r, s, t, u,
y, z (in upper or lower case)
Recognized Numbers = 0, 1, 2, 3, 4, 5, 6, 7, 8, 9
Recognized Punctuation = period, comma, minus, blank

A
163
1-717-767-6511
COMMUNICATION FORMAT
Data is transferred from the meter through a serial communication channel.
In serial communications, the voltage is switched between a high and low level
at a predetermined rate (baud rate) using ASCII encoding. The receiving device
reads the voltage levels at the same intervals and then translates the switched
levels back to a character.
The voltage level conventions depend on the interface standard. The table
lists the voltage levels for each standard.
Data is transmitted one byte at a time with a variable idle period between
characters (0 to ∞). Each ASCII character is “framed” with a beginning start bit,
an optional parity bit and one or more ending stop bits. The data format and
baud rate must match that of other equipment in order for communication to
take place. The figures list the data formats employed by the meter.
Start bit and Data bits
Data transmission always begins with the start bit. The start bit signals the
receiving device to prepare for reception of data. One bit period later, the least
significant bit of the ASCII encoded character is transmitted, followed by the
remaining data bits. The receiving device then reads each bit position as they are
transmitted.
Parity bit
After the data bits, the parity bit is sent. The transmitter sets the parity bit to
a zero or a one, so that the total number of ones contained in the transmission
(including the parity bit) is either even or odd. This bit is used by the receiver
to detect errors that may occur to an odd number of bits in the transmission.
However, a single parity bit cannot detect errors that may occur to an even
number of bits. Given this limitation, the parity bit is often ignored by the
receiving device. The PAX meter ignores the parity bit of incoming data and
sets the parity bit to odd, even or none (mark parity) for outgoing data.
Stop bit
The last character transmitted is the stop bit. The stop bit provides a single bit
period pause to allow the receiver to prepare to re-synchronize to the start of a
new transmission (start bit of next byte). The receiver then continuously looks
for the occurrence of the start bit. If 7 data bits and no parity is selected, then 2
stop bits are sent from the PAXI.
Character Frame Figure
LOGIC RS232* RS485*INTERFACE STATE
1TXD,RXD; -3 to -15 V a-b < -200 mVmark (idle)
0TXD,RXD; +3 to +15 V a-b > +200 mVspace (active)
* Voltage levels at the Receiver
COMMAND RESPONSE TIME
The meter can only receive data or transmit data at any one time (half-duplex
operation). During RS232 transmissions, the meter ignores commands while
transmitting data, but instead uses RXD as a busy signal. When sending
commands and data to the meter, a delay must be imposed before sending
another command. This allows enough time for the meter to process the
command and prepare for the next command.
At the start of the time interval t1, the computer program prints or writes the
string to the com port, thus initiating a transmission. During t1, the command
characters are under transmission and at the end of this period, the command
terminating character (*, $ or slave only <CR>) is received by the meter. The
time duration of t1is dependent on the number of characters and baud rate of
the channel.
t1= (10 times the # of characters) / baud rate
At the start of time interval t2, the meter starts the interpretation of the
command and when complete, performs the command function. This time
interval t2varies (See Timing Diagrams). If no response from the meter is
expected, the meter is ready to accept another command.
If the meter is to reply with data, the time interval t2is controlled by the use
of the command terminating character. The ‘*’ or ‘<CR>’ terminating character
results in a response time window of 50 msec. minimum and 100 msec.
maximum. This allows sufficient time for the release of the sending driver on
the RS485 bus. Terminating the command line with ‘$’ results in a response
time window (t2) of 2 msec. minimum and 50 msec. maximum. The faster
response time of this terminating character requires that sending drivers release
within 2 msec. after the terminating character is received.
At the beginning of time interval t3, the meter responds with the first
character of the reply. As with t1, the time duration of t3is dependent on the
number of characters and baud rate of the channel. At the end of t3, the meter is
ready to receive the next command.
t3= (10 times the # of characters) / baud rate
The maximum serial throughput of the meter is limited to the sum of the
times t1, t2and t3.
NO REPLY FROM METER
RESPONSE FROM METER
Timing Diagrams
COMMAND COMMENT PROCESS TIME (t2)
RReset 2-50 msec.
#Literal 2-50 msec.
Numeric Slave 2-50 msec.
VWrite 100-200 msec.
T Transmit 2-50 msec. for $
50-100 msec. for * and <CR>
PPrint 2-50 msec. for $
50-100 msec. for * and <CR>
SERIAL TIMING

A
164 www.redlion.net
ª
«
ANALOG ASSIGNMENT
ª
«
ANALOG LOW SCALE VALUE
ª
«
ANALOG HIGH SCALE VALUE
PARAMETER MENU
PARAMETER MENU
ª
«
ANALOG TYPE
Enter the analog output type. For voltage output use terminals 16 and 17. For
current output use terminals 18 and 19. Only one range can be used at a time.
Select the display that the analog output is to follow:
Enter the display value within the selected Analog Assignment that
corresponds to the high limit of the type selected.
The decimal point is determined by the decimal point setting of the assigned
counter or rate. The scale value can not be set to read values with more than 6
digits. Reverse acting output is possible by reversing the scaling values.
-99999 to 999999
-99999 to 999999
Module 8 is the programming for the analog output parameters. To have an
analog output signal, an analog output plug-in card needs to be installed (See
Ordering Information). This section replaces the bulletin that comes with the
analog plug-in card. Please discard the separate literature when using the plug-
in card with the PAXI.
SELECTION RANGE
0-20 0 to 20 mA
4-20 4 to 20 mA
0-10 0 to 10 V
HI
C CNt
LO
b CNt
rAtE
A CNt
Enter the display value within the selected Analog Assignment that
corresponds to the low limit of the type selected.
The decimal point is determined by the decimal point setting of the assigned
counter or rate. The scale value can not be set to read values with more than 6
digits. Reverse acting output is possible by reversing the scaling values.
RESTORE FACTORY DEFAULTS
Use the arrow keys to display and press PAR.
The meter will display and then returns to .
Press DSP key to return to the Display Mode. This will
overwrite all user settings with the factory settings.
Pressing the PAR and DSP keys at the same time on power-up will load the
factory settings and display . This allows operation in the event of a
memory failure or corrupted data. Immediately press RST key and reprogram
the meter. If the meter is powered down again before pressing the RST key, the
existing dynamic data will not be overwritten.
ª
«
6.8 MODULE 8 - ANALOG OUTPUT PARAMETERS ()
6.9 MODULE 9 - FACTORY SERVICE OPERATIONS ()
Enter the desired Display Intensity Level (0-15) by
using the arrow keys. The display will actively dim or
brighten as the levels are changed. This parameter also
appears in Quick Programming Mode when enabled.
DISPLAY INTENSITY LEVEL
ª
«
PAXI ONLY
= Counter C Value = Maximum Value
C CNt HI
= Counter B Value = Minimum Value
b CNt LO
= Counter A Value = Rate Value
A CNt rAtE

A
165
1-717-767-6511
PAXI: CALIBRATION
TROUBLESHOOTING
For further assistance, contact technical support at the appropriate company numbers listed.
PROBLEM REMEDIES
NO DISPLAY CHECK: Power level, power connections
PROGRAM LOCKED-OUT CHECK: Active (lock-out) user input
ENTER: Security code requested
CERTAIN DISPLAYS ARE LOCKED OUT CHECK: Module 3 programming
INCORRECT DISPLAY VALUE or NOT
COUNTING
CHECK: Input wiring, DIP switch setting, input programming, scale factor calculation,
input signal level, user input jumper, lower input signal frequency
USER INPUT NOT WORKING CORRECTLY CHECK: User input wiring, user input jumper, user input being used for signal, Module 2
OUTPUT DOES NOT WORK CHECK: Corresponding plug-in card installation, output configuration, output wiring
JITTERY DISPLAY CHECK: Wiring is per EMC installation guidelines, input signal frequency, signal quality,
scaling, update time, DIP switch setting
“ ” RATE CHECK: Lower input signal frequency, reduce rate scaling
MODULES or PARAMETERS NOT ACCESSIBLE CHECK: Corresponding plug-in card installation, related controlling parameter selected
ERROR CODE ( )PRESS: Reset key (if unable to clear contact factory.)
SERIAL COMMUNICATIONS CHECK: Wiring, connections, meter and host settings
Analog Output Card Calibration
Before starting, verify that a precision meter with an accuracy of 0.05% or
better (voltmeter for voltage output and/or current meter for current output) is
connected and ready. Then perform the following procedure:
1. Use the arrow keys to display and press PAR.
2. is displayed. Use the arrow keys to select and press PAR.
3. Using the chart below, step through the five selections to be calibrated. At
each prompt, use the PAXI arrow keys to adjust the output so that the
external meter display matches the selection being calibrated. When the
external reading matches, or if the range is not being calibrated, press PAR.
4. When appears, press PAR twice and remove the external meters .
SELECTION EXTERNAL METER ACTION
0.0-A0.00 Adjust if necessary, press PAR
4.0-A4.00 Adjust if necessary, press PAR
20.0-A20.00 Adjust if necessary, press PAR
0.0u 0.00 Adjust if necessary, press PAR
10.0u 10.00 Adjust if necessary, press PAR
The only item in the PAXI meter that can be calibrated
is the Analog Output. The Count A and B values are scaled
using the parameters in Module 1, Counter C value is scaled
using Module 5 and the Rate value is scaled using Module 4. If the meter appears
to be indicating incorrectly or inaccurately, refer to the Troubleshooting section.
When Analog Out recalibration is required (generally every 2 years), it
should be performed by qualified technicians using appropriate equipment.
Calibration does not change any user programmed parameters.
Calibration may be aborted by disconnecting power to the meter before
exiting Module 9. In this case, the existing calibration settings remain in effect.
Note: Allow a 30 minute warm-up period before staring calibration.
ª
«
Shaded areas are model dependent.

A
166 www.redlion.net
5-CtrC Counter C Input Parameters
-
PAXC & I only
DISPLAY PARAMETER FACTORY
SETTING USER SETTING
C CNt COUNTER C OPERATING MODE NONE
CdECPt
CrESEt
COUNTER C DECIMAL POSITION
COUNTER C RESET ACTION
ZErO
CSCFAC COUNTER C SCALE FACTOR (A)
COUNTER C SCALE FACTOR (B)*
CSCALr COUNTER C SCALE MULTIPLIER
CCNtLd
COUNTER C COUNT LOAD VALUE (B)*
COUNTER C COUNT LOAD VALUE (A)
500
C P-UP COUNTER C RESET POWER-UP
DISPLAY PARAMETER USER SETTING
FACTORY
SETTING
USr-1 USER INPUT 1 NO
USr-2 USER INPUT 2 NO
USr-3 USER INPUT 3 NO
F1 FUNCTION KEY 1 NO
F2 FUNCTION KEY 2 NO
rSt RESET KEY dSPrSt
Sc-F1 2nd FUNCTION KEY 1 NO
Sc-F2 2nd FUNCTION KEY 2 NO
1-INP
Counter A & B Input Parameters - PAXC & I only
2-FNC User Input and Function Key Parameters
3-LOC Display and Program Lockout Parameters
4-rtE Rate Input Parameters
-
PAXI & R only
DISPLAY PARAMETER USER SETTING
FACTORY
SETTING
SP-3
A CNt
SP-4
b CNt
SETPOINT 3 ACCESS LOCK-OUT
COUNTER A DISPLAY LOCK-OUT
LOC
rEd
LOC
LOC
ACNtLd
C CNt
LOC
LOC
ASCFAC
LO
bCNtLd
rAtE
SCALE FACTOR A ACCESS
MIN DISPLAY LOCK-OUT
COUNT LOAD B ACCESS
RATE DISPLAY LOCK-OUT
ENt
LOC
LOC
rEd
bSCFAC
SP-1
CCNtLd
HI
SCALE FACTOR B ACCESS
SETPOINT 1 ACCESS LOCK-OUT
COUNT LOAD C ACCESS
MAX DISPLAY LOCK-OUT
LOC
LOC
LOC
LOC
COdE
CSCFAC
SP-2
SECURITY CODE
SCALE FACTOR C ACCESS
SETPOINT 2 ACCESS LOCK-OUT
0
LOC
LOC
rdSP 9
rdSP 8
rdSP 6
rdSP 4
rdSP 7
rdSP 5
rdSP 3
rdSP 2
rdSP 1
rdSP 0
rINP 9
rINP 8
rINP 6
rINP 4
rINP 7
rINP 5
rINP 3
rINP 2
rINP 1
rINP 0
rAtEEN
SCALING PT. 10 - DISPLAY VALUE
SCALING PT. 9 - DISPLAY VALUE
SCALING PT. 7 - DISPLAY VALUE
SCALING PT. 5 - DISPLAY VALUE
SCALING PT. 8 - DISPLAY VALUE
SCALING PT. 6 - DISPLAY VALUE
SCALING PT. 4 - DISPLAY VALUE
SCALING PT. 3 - DISPLAY VALUE
SCALING PT. 2 - DISPLAY VALUE
SCALING PT. 1 - DISPLAY VALUE
SCALING PT. 10 - INPUT VALUE
SCALING PT. 9 - INPUT VALUE
SCALING PT. 7 - INPUT VALUE
SCALING PT. 5 - INPUT VALUE
SCALING PT. 8 - INPUT VALUE
SCALING PT. 6 - INPUT VALUE
SCALING PT. 4 - INPUT VALUE
SCALING PT. 3 - INPUT VALUE
SCALING PT. 2 - INPUT VALUE
SCALING PT. 1 - INPUT VALUE
RATE ASSIGNMENT
9000
8000
6000
4000
7000
5000
3000
2000
1000
0
9000.0
8000.0
6000.0
4000.0
7000.0
5000.0
3000.0
2000.0
1000.0
0.0
rAtE-a
rOUNd
LO-Udt
RATE DISPLAY ROUNDING
LOW UPDATE TIME
1
1.0
LOCUt
HI-Udt
MINIMUM LOW CUT OUT
HIGH UPDATE TIME
0
2.0
LO-t
SE6S
HI-t
rtE dP
MIN CAPTURE DELAY TIME
LINEARIZER SEGMENTS
MAX CAPTURE DELAY TIME
RATE DECIMAL POINT
2.0
0
2.0
0
DISPLAY PARAMETER USER SETTING
FACTORY
SETTING
SETPOINT 4 ACCESS LOCK-OUT
COUNTER B DISPLAY LOCK-OUT
COUNT LOAD A ACCESS
COUNTER C DISPLAY LOCK-OUT
DISPLAY PARAMETER FACTORY
SETTING USER SETTING
A CNt COUNTER A OPERATING MODE cnt
AdECPt
ArESEt
COUNTER A DECIMAL POSITION
COUNTER A RESET ACTION
ZErO
ASCFAC COUNTER A SCALE FACTOR (A)
COUNTER A SCALE FACTOR (B) *
ASCALr COUNTER A SCALE MULTIPLIER
ACNtLd
COUNTER A COUNT LOAD VALUE (B)*
COUNTER A COUNT LOAD VALUE (A)
500
A P-UP COUNTER A RESET POWER-UP
PrSEN PRESCALER OUTPUT ENABLE
PrVAL PRESCALER SCALE VALUE
b CNt COUNTER B OPERATING MODE
b P-UP
bCNtLd
bdECPt
bSCFAC
bSCALr
brESEt
COUNTER B RESET POWER-UP
COUNTER B SCALE FACTOR (B)*
COUNTER B COUNT LOAD VALUE (A)
COUNTER B DECIMAL POSITION
COUNTER B COUNT LOAD VALUE (B)*
COUNTER B SCALE FACTOR (A)
COUNTER B SCALE MULTIPLIER
COUNTER B RESET ACTION
* See Module 2, Exchanging Parameter Lists, for details on programming this value.
* See Module 2, Exchanging Parameter Lists, for details on programming this value.
Shaded areas are model dependent.
PARAMETER VALUE CHART Programmer ________________ Date ________
PAX Model Number _________ Meter# _____________ Security Code __________
Shaded areas are model dependent.
Shaded areas are model dependent.

A
167
1-717-767-6511
8-AnA Analog Output Parameters
-
PAXI only
7-SrL Serial Communication Parameters
-
PAXI only
DISPLAY PARAMETER FACTORY
SETTING USER SETTING
bAUd BAUD RATE 9600
dAtA DATA BIT 7
PAr PARITY BIT Odd
Addr METER ADDRESS 00
AbrV ABBREVIATED PRINTING NO
rAtE
A CNt
PRINT RATE
PRINT COUNTER A
NO
YES
CNtLd
HILO
b CNt
PRINT COUNT LOAD VALUES
PRINT MAX & MIN
PRINT COUNTER B
NO
NO
NO
SCFAC
C CNt PRINT COUNTER C
NO
NO
SPNt NO
PRINT SETPOINT VALUES
PARAMETER FACTORY
SETTING USER SETTING
tYPE 4-20
ASIN ANALOG ASSIGNMENT rAtE
AN-LO ANALOG LOW SCALE VALUE 0
AN-HI ANALOG HIGH SCALE VALUE 1000
ANALOG TYPE
DISPLAY
0
A CNt
NO
NO
NO
NO
1.00
0.00
100
0.00
100
NO
OFF
0
A CNt
HI
OFF
NOr
NO
NOr
SP-4
USER SETTING
NO
NO
NO
NO
1.00
0.00
100
0.00
100
NO
OFF
HI
OFF
NOr
NO
NOr
SP-3
FACTORY
SETTING
USER SETTING
FACTORY
SETTING
0
A CNt
NO
NO
NO
NO
1.00
0.00
100
0.00
100
NO
OFF
0
A CNt
SETPOINT HYSTERESIS (rate)
SETPOINT ASSIGNMENT
HYS-n
ASN-n
HI
OFF
NOr
NO
NOr
SP-2
USER SETTING
NO
RESET WHEN SPn+1 DEACTIVATES
rSAE-n
NO
RESET WHEN SPn+1 ACTIVATES
rSAS-n
NO
SETPOINT RESET WITH DISPLAY
rSd-n
NO
COUNTER AUTO RESET ACTION
AUtO-n
1.00
SETPOINT TIME OUT
tOUt-n
0.00
100
SETPOINT ON DELAY
SETPOINT VALUE (B)*
tON-n
0.00
100
SETPOINT OFF DELAY
SETPOINT VALUE (A)
tOFF-n
SP-n
NO
OFF
STANDBY OPERATION
SETPOINT ACTION
Stb-n
ACt-n
HI
OFF
NOr
NO
NOr
SETPOINT BOUNDARY TYPE
SETPOINT POWER UP STATE
SETPOINT OUTPUT LOGIC
SETPOINT TRACKING
SETPOINT ANNUNCIATORS
tYP-n
SUP-n
OUt-n
trC-n
LIt-n
SP-1
FACTORY
SETTING
USER SETTING
FACTORY
SETTING
PARAMETERDISPLAY
6-SPt Setpoint (Alarm) Parameters
PRINT SCALE FACTORS
* See Module 2, Exchanging Parameter Lists, for details on programming this value.
Shaded areas are model dependent.
9-fCS Factory Service Parameters
DISPLAY
DISPLAY INTENSITY LEVEL 3
d-LEV
FACTORY
SETTING USER SETTINGPARAMETER

A
168 www.redlion.net
x x x x x x x
Counter x
Operating
Mode
F1/F2 Keys
Counter x
Reset
Action
Counter x
Decimal
Position
Counter x
Scale
Factor
Counter x
Scale
Multiplier
Counter x
Count Load
Value
Counter x
Reset at
Power-up
Prescaler
Output
Enable
Prescaler
Scale
Value
USER INPUTS FUNCTION KEYS
x x x
Counter x
Display
Lock-out
Rate
Display
Lock-out
Max
Display
Lock-out
Min
Display
Lock-out
Setpoint 1-4
Access
Counter x
Count Load
Access
Scale
Factor x
Access
Security
Code
##
Rate
Assignment
Low Update
Time
High Update
Time
Rate Decimal
Position
Linearizer
Segments
Rate Scaling
Display
Rate Scaling
Input
Rate Display
Rounding
Min. Low
Cut-out
Max. Capture
Delay Time
Min. Capture
Delay Time
Counter C
Operating
Mode
Counter C
Reset
Action
Counter C
Decimal
Position
Counter C
Scale
Factor
Counter C
Scale
Multiplier
Counter C
Count Load
Value
Counter C
Reset at
Power-up
Setpoint
Select
Setpoint
Annunciators
Output
Logic
Power-up
State
Setpoint
Action
Setpoint
Assignment
Setpoint
Value
Setpoint
Tracking
Boundary
Type
Standby
Operation
Setpoint
Hysteresis
Off Time
Delay
On Time
Delay
Time-out
Value
Counter
Auto Reset
Reset with
Display Reset
Reset when
SPn+1
Activates
Reset
w/SPn+1
Deactivates
Baud
Rate
Data Bit Parity Bit Meter
Address
Analog
Type
Display
Intensity Level
x = Counter A, B, or C
= Setpoint number
# = Scaling Points (0-9)
Analog
Assignment
Analog Low
Scale Value
Analog High
Scale Value
Abbreviated
Printing
Print
Options
Print
Counter A
Print
Counter B
Print
Counter C
Print Rate Print
Max/Min
Print Scale
Factors
Print Count
Load Values
Print Setpoint
Values
Factory
Service Code
PROGRAMMING QUICK OVERVIEW
Counter parameters apply to the PAXC and PAXI, while the rate
parameters apply to the PAXR and PAXI.

A
169
1-717-767-6511
MODEL PAXI - 1/8 DIN DUAL COUNTER/RATE METER
ANNUNCIATORS:
A - Counter A
B - Counter B
C - Counter C
- Rate
- Maximum (High) Rate
- Minimum (Low) Rate
- Upper significant digit display of counter
SP1 - setpoint 1 output state
SP2 - setpoint 2 output state
SP3 - setpoint 3 output state
SP4 - setpoint 4 output state
RATE DISPLAY:
Accuracy: ±0.01%
Minimum Frequency: 0.01 Hz
Maximum Frequency: see Max Signal Frequencies Table.
Maximum Display: 5 Digits: 99999
Adjustable Display (low) Update: 0.1 to 99.9 seconds
Over Range Display: “ ”
COUNTER DISPLAYS:
Maximum display: 8 digits: ± 99999999 (greater than 6 digits display
Alternates between high order and low order.)
INPUTS A and B:
DIP switch selectable to accept pulses from a variety of sources
including switch contacts, TTL outputs, magnetic pickups and all
standard RLC sensors.
LOGIC: Input trigger levels VIL = 1.5 V max.; VIH = 3.75 V min.
Current sinking: Internal 7.8 KΩpull-up to +12 VDC, IMAX = 1.9 mA.
Current sourcing: Internal 3.9 KΩpull-down, 7.3 mA max. @ 28 VDC,
VMAX = 30 VDC.
Filter: Damping capacitor provided for switch contact bounce. Limits
input frequency to 50 Hz and input pulse widths to 10 msec. minimum.
MAGNETIC PICKUP:
Sensitivity: 200 mV peak
Hysteresis: 100 mV
Input impedance: 3.9 KΩ@ 60 Hz
Maximum input voltage: ±40 V peak, 30 Vrms
DUAL COUNT MODES:
When any dual count mode is used, then User Inputs 1 and/or 2 will
accept the second signal of each signal pair. The user inputs do not
have the Logic/Mag, HI/LO Freq, and Sink/Source input setup
switches. The user inputs are inherently a logic input with no low
frequency filtering. Any mechanical contacts used for these inputs in a
dual count mode must be debounced externally. The user input may
only be selected for sink/source by the User Jumper placement.
PRESCALER OUTPUT:
NPN Open Collector: ISNK = 100 mA max. @ VOL = 1 VDC max. VOH = 30
VDC max. With duty cycle of 25% min. and 50 % max.
PAXI SPECIFICATIONS
MAXIMUM SIGNAL FREQUENCIES TABLE
To determine the maximum frequency for the input(s), first answer the questions with a yes (Y) or no (N). Next determine the Count Mode
to be used for the counter(s). If dual counters are used with different Count Modes, then the lowest frequency applies to both counters.
OCOUNTER, DUAL COUNTER, RATE AND SLAVE DISPLAY
O6-DIGIT 0.56" RED SUNLIGHT READABLE OR STANDARD
GREEN DISPLAY
OVARIABLE INTENSITY DISPLAY
O10 POINT SCALING (FOR NON-LINEAR PROCESSES)
OFOUR SETPOINT ALARM OUTPUTS (W/OPTION CARD)
ORETRANSMITTED ANALOG OUTPUT (W/OPTION CARD)
OCOMMUNICATION AND BUS CAPABILITIES (W/OPTION CARD)
OBUS CAPABILITIES; DEVICENET, MODBUS, AND PROFIBUS-DP
OCRIMSON PROGRAMMING SOFTWARE
N/A21N/A34N/A21N/A34Rate Only
34346868Quadrature x4
3 *3.5 *3.5 *4 *5 *6 *6 *7 *687912161317Quadrature x2
3 *3.5 *3.5 *4 *5 *6 *6 *7 *1011101217201922Quadrature x1
4 *5 *4 *5 *7 *9 *7 *9 *787912161317Count x2
797.59111312131113151817212534Count x1
(Values are in KHz)(Values are in KHz)(Values are in KHz)(Values are in KHz)COUNT MODE
YNYNYNYNYNYNYNYNIs Counter C used?
YYNNYYNNYYNNYYNNIs Prescaler Output used?
YYYYNNNNYYYYNNNNAre any setpoints used?
Dual: Counter A & B or Rate not assigned to active single counterSingle: Counter A or B (with/without rate) or Rate onlyFUNCTION QUESTIONS
This is a brief overview of the PAXI. For complete specifications and programming information, see the
PAX Digital Input Panel Meters Bulletin starting on page 137.
CCUS LISTEDUS LISTED
UL
R
IND. CONT. EQ.
51EB

A
170 www.redlion.net
This page intentionally left blank.

1711-717-767-6511
PRESET
COUNTERS
B
The Trusted Source for
Innovative Control
Solutions

Page 177 Page 178 Page 184 Page 185
Page Number
B
172 www.redlion.net
QUICK Specs
8 Digit, .46" (12mm) Reflective,
Green and Red Backlight LCD
2 x 6 Digit, Main Display .3"
(7mm) Sec. Display .2" (5mm)
Reflective and Backlight LCD
6 Digit, .56" (14mm)
Red LED
6 Digit, .56" (14mm) Standard
Green or Sunlight Readable Red
LED, Adjustable Intensity
Display
Counter/Rate Meter 1/16 DIN Counter/Rate Meter 1/8 DIN Counter/Rate Meter
With Setpoint Capability
1/8 DIN Counter
With Setpoint Capability
Uni-Directional
Up/Down
Inhibit
Add/Subtract
Add/Add
Quadrature
Batch
Uni-Directional
Up/Down
Inhibit
Add/Subtract
Add/Add
Quadrature
Batch
Uni-Directional
Up/Down
Inhibit
Add/Subtract
Add/Add
Quadrature
Batch
Uni-Directional
Up/Down
Inhibit
Add/Subtract
Add/Add
Quadrature
Batch
20,000 Counts/Sec.
Program Dependent
12,000 Counts/Sec.
Model and Program Dependent
20,000 Counts/Sec.
Program Dependent
34,000 Counts/Sec.
34,000 Counts/Sec.
Program Dependent
Yes Yes Yes Yes
Front Panel, Remote Front Panel, Remote Front Panel, Remote Front Panel, Remote
No
Yes, with Micro Line
Power Supply
12 VDC @ 100 mA 24 VDC @ 100 mA, over 50 V
24 VDC @ 50 mA, under 50 V 12 VDC @ 100 mA
Single Form C Relay
Dual Sinking
Single Form A
Dual Form A
Current Sinking
Dual Form C Relays
Dual Form C
Quad Form A
Quad Sinking
Quad Sourcing
RS485 RS485 No No
9 to 28 VDC
85 to 250 VAC
18 to 36 VDC
24 VAC
50 to 250 VAC
21.6 to 250 VDC
85 to 250 VAC
11 to 36 VDC
24 VAC
Max. Input
Frequency
Input Scaling &
Decimal Points
Reset
Capability
Sensor Power
Setpoint
Capability
Power Source
Communications
Counting
Capability
Description
CUB5 C48C PAXLCR PAXC
DUAL OUTPUTS MULTI OUTPUTS
Preset Counters
39 mm (H) x 75 mm (W) 50 mm (H) x 50 mm (W) 50 mm (H) x 97mm (W) 50 mm (H) x 97 mm (W)
Dimensions
(Height)x (Width)

Page 186 Page 187 Page 193 *
Page Number
B
1731-717-767-6511
MULTI OUTPUTS
QUICK Specs
6 Digit, .56" (14mm) Standard
Green or Sunlight Readable Red
LED, Adjustable Intensity
2 x 8 Digit, .3" (7mm)
Backlight LCD
2 x 8 Digit, .3" (7mm)
Backlight LCD,
Dual Color Version
6 Digit, .56" (14mm) LED
Display
1/8 DIN Counter/Rate Meter
With Output Optio Card
Capability
Counter/Rate Meter Counter/Rate Meter with
Messaging Capability
Counter or Rate Meter
Uni-Directional
Up/Down
Inhibit
Add/Subtract
Add/Add
Quadrature
Batch
Uni-Directional
Up/Down
Inhibit
Add/Subtract
Add/Add
Quadrature
Batch
Uni-Directional
Up/Down
Inhibit
Add/Subtract
Add/Add
Quadrature
Batch
Foot/Inch
Uni-Directional
Up/Down
Inhibit
Add/Subtract
Add/Add
Quadrature
34,000 Counts/Sec.
Program Dependent
23,000 Counts/Sec.
Model and Program Dependent
15,000 Counts/Sec.
Model and Program Dependent
10,000 Counts/Sec.
Model and Program Dependent
Yes Yes Yes Yes
Front Panel, Remote Front Panel, Remote Front Panel, Remote Front Panel, Remote
12 VDC @ 100 mA 12 VDC @ 100 mA 12 VDC @ 100 mA 12 VDC @ 100 mA
Dual Form C
Quad Form A
Quad Sinking
Quad Sourcing
1,2,4 or 6 Preset Capability,
Dual Relay
Current Sinking
1,2,4 or 6 Preset Capability,
Dual Relay
Current Sinking
Single Form C
Dual Form C
Current Sinking
RS232
RS485
Modbus
DeviceNet
Profibus
Ethernet w/ICM8
RS485 RS232
RS485 20 mA Current Loop
85 to 250 VAC
11 to 36 VDC
24 VAC
115/230 VAC
12 VDC
115/230 VAC
12 VDC
115/230 VAC
11 to 14 VDC
50 mm (H) x 97 mm (W) 75 mm (H) x 75 mm (W) 75 mm (H) x 75 mm (W) 69 mm (H) x 133 mm (W)
Max. Input
Frequency
Input Scaling &
Decimal Points
Reset
Capability
Sensor Power
Setpoint
Capability
Power Source
Dimensions
(Height)x (Width)
Communications
Counting
Capability
Description
PAXI LEGEND LEGEND PLUS GEM1 / 2
DUAL OUTPUTS
Preset Counters
*See website for product information.

***
B
174 www.redlion.net
QUICK Specs
6 Digit, .56" (14mm) LED 6 Digit, .56" (14mm) LED 4 Digit, .4" (10mm) LED
4 Digit, .5" (13mm) LCD
Display
Counter/Rate Meter or
Dual Count Capability Batch Counter Counter
Uni-Directional
Up/Down
Inhibit
Add/Subtract
Add/Add
Quadrature
Dual Count
Uni-Directional
Up/Down
Inhibit
Add/Subtract
Add/Add
Quadrature
Batch
Uni-Directional
Up/Down
10,000 Counts/Sec.
Model and Program Dependent
10,000 Counts/Sec.
Model and Program Dependent 2500 Counts/Sec.
Yes Yes No
Front Panel, Remote Front Panel, Remote Front Panel, Remote
12 VDC @ 100 mA 12 VDC @ 100 mA 12 VDC @ 100 mA
Single or Dual Form C
Current Sinking
Single or Dual Form C
Current Sinking
Single or Dual Form C,
Solid State
20 mA Current Loop 20 mA Current Loop No
115/230 VAC
11 to 14 VDC
115/230 VAC
11 to 14 VDC
115/230 VAC
11 to 14 VDC
69 mm (H) x 133 mm (W) 69 mm (H) x 133 mm (W) 72 mm (H) x 72 mm (W)
Max. Input
Frequency
Input Scaling &
Decimal Points
Reset
Capability
Sensor Power
Setpoint
Capability
Power Source
Dimensions
(Height)x (Width)
Communications
Counting
Capability
Description
GEM41 / 42 GEM33 LIBC
DUAL OUTPUTS
Preset Counters
Page Number
*See website for product information.

B
1751-717-767-6511
PAXLCR
REPLACEMENT Guide
WHAT YOU’RE USING NOW CURRENT PRODUCT
C48CCUBC
QDisplay: 2 x 6, Main Display .3"
(7 mm), Secondary Display .2"
(5 mm) Reflective LCD
QPower Source: 85 to 250 VAC,
11 to 36 VDC
QCount Speed: 12 KHz Max.
QDisplay: .2" (5 mm) Reflective LCD
QPower Source: 115/230 VAC, 10 to
28 VDC, 10 to 28 VAC
QCount Speed: 12 KHz Max.
C48CLYNX
QDisplay: 2 x 6, Main Display .3"
(7 mm), Secondary Display .2"
(5 mm) Reflective LCD
QPower Source: 85 to 250 VAC,
11 to 36 VDC
QCount Speed: 12 KHz Max.
Panel Cut-Out Dimension Differences
QDisplay: .3" (8 mm) Reflective LCD
QPower Source: 115/230 VAC, 11 to
14 VDC, 21.5 to 30 VDC
QCount Speed: 2500 Hz Max.
MODEL NUMBER FEATURES MODEL NUMBER FEATURES
Note: Refer to the current product literature, as some differences may exist.
SCP
QDisplay: 6 Digit, .56" (14 mm)
Red LED
QPower Source: 50 to 250 VAC,
21.6 to 250 VDC
QCount Speed: 20 KHz Max.
QRequires Appropriate Option Card
Panel Cut-Out Dimension Differences
QDisplay: None
QPower Source: 115/230 VAC, 12 VDC
QCount Speed: 10 KHz Max.
PAXLCRSCD
QDisplay: 6 Digit, .56" (14 mm)
Red LED
QPower Source: 50 to 250 VAC,
21.6 to 250 VDC
QCount Speed: 20 KHz Max.
QRequires Appropriate Option Card
Panel Cut-Out Dimension Differences
QDisplay: 6 Digit, .43" (11 mm)
Red LED
QPower Source: 115/230 VAC, 12 VDC
QCount Speed: 10 KHz Max.
PAXLCRSC2
QDisplay: 6 Digit, .56" (14 mm)
Red LED
QPower Source: 50 to 250 VAC,
21.6 to 250 VDC
QCount Speed: 20 KHz Max.
QRequires Appropriate Option Card
Panel Cut-Out Dimension Differences
QDisplay: 6 Digit, .43" (11 mm)
Red LED
QPower Source: 115/230 VAC, 12 VDC
QCount Speed: 10 KHz Max.
PAXI
GEM1, 2, 33, 41 and 42
QDisplay: 6 Digit, .56" (14 mm)
Red LED
QPower Source: 115/230 VAC,
11 to 36 VDC
QCount Speed: 34 KHz Max.
QRequires Appropriate Option Card
Panel Cut-Out Dimension Differences
QDisplay: 6 Digit, .56" (14 mm)
Red LED
QPower Source: 115/230 VAC or 11 to
14 VDC
QCount Speed: 10 KHz Max.
C48C
LIBRA
QDisplay: 2 x 6, Main Display .3"
(7 mm), Secondary Display .2"
(5 mm) Reflective LCD
QPower Source: 85 to 250 VAC,
11 to 36 VDC
QCount Speed: 12 KHz Max.
Panel Cut-Out Dimension Differences
QDisplay: 4 Digit, .4" (10 mm) LED or
.5" (13 mm) LCD
QPower Source: 115/230 VAC, 11 to
14 VDC
QCount Speed: 2500 Hz
PAXI
IMI
QDisplay: 6 Digit, .56" (14 mm)
Red LED
QPower Source: 115/230 VAC,
11 to 36 VDC
QCount Speed: 34 KHz Max.
QRequires Appropriate Option Card
QDisplay: 6 Digit, .56" (14 mm)
Red LED
QPower Source: 115/230 VAC
QCount Speed: 50 KHz Max.

B
176 www.redlion.net
This page intentionally left blank.

B
1771-717-767-6511
MODEL CUB5 - MINIATURE ELECTRONIC 8-DIGIT DUAL COUNTER AND
RATE INDICATOR
This is a brief overview of the CUB5. For complete specifications and programming information, see the
CUB5 Bulletin starting on page 102.
OLCD, REFLECTIVE OR GREEN/RED LED BACKLIGHTING
O0.46" (11.7 mm) HIGH DIGITS
OOPTIONAL RELAY OUTPUT MODULE
OOPTIONAL COMMS OUTPUT MODULES
OCOUNT SPEEDS UP TO 20 KHZ
OOPERATES FROM 9 TO 28 VDC POWER SOURCE
OPROGRAMMABLE SCALING FOR COUNT AND RATE
OBI-DIRECTIONAL COUNTING, UP/DOWN CONTROL
OQUADRATURE SENSING (UP TO 4 TIMES RESOLUTION)
OANTI-COINCIDENCE COUNTING (ADD/ADD & ADD/SUB)
ONEMA 4X/IP65 SEALED FRONT BEZEL
SPECIFICATIONS
COUNTER DISPLAYS:
Counter A: 8-digits, enabled in all count modes
Display Range: -9999999 to 99999999
Overflow Indication: Display flashes “Cnt OVEr”
Counter B: 7-digits, enabled in Dual Counter mode only
Display Designator: “b” to the left side of the display
Display Range: 0 to 9999999 (positive count only)
Overflow Indication: Display flashes “bCntOVEr”
Maximum Count Rates: 50% duty cycle
Without setpoint option card: 20 KHz (all count modes)
With setpoint option card: 20 KHz for any count mode except Quadrature
x4 (18 KHz) and Dual Counter (17 KHz)
RATE DISPLAY: 6-digits, may be enabled or disabled in any mode
Display Designator: “R” to the left side of the display
Display Range: 0 to 999999
Over Range Display: “R OLOLOL”
Maximum Frequency: 20 KHz
Minimum Frequency: 0.01 Hz
Accuracy: ±0.01%
COUNT/RATE SIGNAL INPUTS (INP A and INP B):
Input A: DIP switch selectable to accept pulses from a variety of sources.
See Section 2.0 Setting the DIP Switches for Input A specifications.
Input B: Logic signals only
Trigger levels: VIL = 1.0 V max; VIH = 2.4 V min; VMAX = 28 VDC
Current sinking: Internal 10KΩpull-up resistor to +9 to 28 VDC
Filter (LO Freq.): Damping capacitor provided for switch contact bounce.
Limits input frequency to 50 Hz and input pulse widths to 10 msec min.
C
C
US LISTED
US LISTED
UL
R
IND. CONT. EQ.
51EB

B
178 www.redlion.net
OLCD, 7 SEGMENT, 2 LINE, 6 DIGIT DISPLAY, POSITIVE
REFLECTIVE OR NEGATIVE TRANSMISSIVE MODELS WITH
RED TOP LINE AND GREEN BOTTOM LINE BACKLIGHTING
OQUADRATURE SENSING ( Up to 4 times resolution)
OBI-DIRECTIONAL COUNTING, UP/DOWN CONTROL
OFIELD REPLACEABLE RELAY OUTPUT BOARDS
OSTATUS INDICATORS FOR OUTPUTS
ONEMA 4X/IP65 SEALED BEZEL
OPARAMETER SECURITY VIA PROGRAMMABLE OPERATOR
ACCESS PRIVILEGES AND PROTECTED VALUE MENU
OPROGRAMMABLE USER INPUTS AND FRONT PANEL
FUNCTION KEY
OHORIZONTAL OR VERTICAL STACKING OF MULTIPLE UNITS
O85 to 250 VAC OR 18 to 36 VDC/24 VAC POWERED UNITS
ORS485 SERIAL COMMUNICATIONS OPTION
OCHOICE OF NUMERIC DATA ENTRY MODES
DESCRIPTION
The Model C48 Counter is available as a Standard Counter or a Batch
Counter. The Standard Counter is available with single or dual presets. The
Batch Counter has a main process counter with dual presets and a secondary
counter with a single preset. The secondary counter can be selected to function
as a batch or a total counter.
The C48C features a 7 segment, 2 line by 6 digit reflective or backlit LCD
display. For the backlit versions, the main display line is red and shows the
count value or the Batch/Total value when preset 3 or output 3 is viewed in the
secondary display. The smaller secondary display line is green and can be used
to view the prescaler value, preset values, output time values or Batch/Total
count values (Batch model).
The C48C offers a choice of nine programmable counting modes for use in
applications requiring bi-directional, anti-coincidence, and quadrature counting.
The unit may be programmed to register counts on both edges of the input signal
providing frequency doubling capability. DIP switches are used for input
configuration set-up and to provide a Program Disable function.
Four front panel push-buttons are used for programming the operating modes
and data values, changing the viewed display, and performing user
programmable functions, e.g. reset, etc. The C48C can be configured for one of
two numeric data entry methods, digit entry or automatic scrolling. The digit
entry method allows for the selection and incrementing of digits individually.
The automatic scrolling method allows for the progressive change of one
through all digit positions by pressing and holding the “up” or “down” button.
The Program Disable DIP switch, a user-programmable code value, and an
external user input selected for Program Disable can be utilized to provide
multi-level protection against unauthorized changes to data values and unit
configuration.
The C48 Counter has programmable User Inputs and a programmable front
panel function key. The user inputs can be configured as sinking (active low) or
sourcing (active high) inputs via a single plug jumper. The user inputs and the
front panel function key can be configured to provide a variety of functions.
The Standard Counter with Dual Presets is available with solid-state or Relay
outputs. The Single Preset model has a solid-state and relay output. The Batch
Counter has relay outputs for Output 2 and the Batch/Total Output 3, with
Output 1 available as solid-state. The Batch Counter is also available with three
solid-state outputs. For all C48 Counters, the solid-state outputs are available in
a choice of NPN current sinking or PNP current sourcing, open-collector
transistor outputs. All relay output boards are field replaceable.
A Prescaler Output model is available as a Dual Preset, with solid-state
outputs. The Prescaler Output is useful for providing a lower frequency scaled
pulse train to a PLC or another external totalizing counter. The Prescaler Output
provides a programmable width output pulse for every count or every 10 counts
registered on the display.
The optional RS-485 serial communication interface provides two-way
communication between a C48 and other compatible equipment such as a
printer, PLC, HMI, or a host computer. In multipoint applications (up to thirty-
two), the address number of each C48 on the line can be programmed from 0 to
99. Data from the C48 can be interrogated or changed, and alarm output(s) may
be reset by sending the proper command code via serial communications. PC
software, SFC48, allows for easy configuration of controller parameters. These
settings can be saved to disk for later use or used for multi-controller down
loading. On-line help is provided within the software.
Optional programming software (SFC48) is available to program all unit
configuration parameters. The software allows unit configurations to be created,
uploaded, downloaded, and saved to a file for later use or multi-unit
programming.
The unit is constructed of a lightweight, high impact plastic case with a
textured front panel and a clear display window. The front panel meets NEMA
4X/IP65 specifications when properly installed. Multiple units can be stacked
horizontally or vertically. Modern surface-mount technology, extensive testing,
plus high immunity to noise interference makes the C48 Counters extremely
reliable in industrial environments.
C48C SERIES - 1/16 DIN COUNTERS
MODEL C48CS - SINGLE PRESET
MODEL C48CD - DUAL PRESET
MODEL C48CB - THREE PRESET BATCH
DIMENSIONS “In inches (mm)” PANEL CUT-OUT
UL Recognized Component,
File # E137808

B
1791-717-767-6511
SPECIFICATIONS
1. DISPLAY: 2 Line by 6 digit LCD display. Positive image reflective or
negative image transmissive with red (top line) and green (bottom line)
backlighting
Main Display: 0.3" (7.62 mm) high digits
Secondary Display: 0.2" (5.08 mm) high digits
Annunciators:
Value: PRS, 1, 2, and 3
Output: 01, 02, and 03.
2. POWER REQUIREMENTS:
AC Versions:
AC Power: 85 to 250 VAC, 50/60 Hz, 9 VA max.
DC Power: 11 to 14 VDC @ 150 mA max. (Non PNP output models)
Note: Models with PNP current sourcing outputs must be powered from AC.
DC Versions (C48XXX1X):
CONTINUOUS:
DC Power: 18 to 36 VDC; 5.5 W max.
AC Power: 24 VAC ±10%; 50/60 Hz; 7 VA max.
Note: The +10% tolerance range on AC input voltage must be strictly
adhered to. DO NOT EXCEED 26.4 VAC.
PEAK (START-UP CURRENT):
AC or DC Power: 500 mA peak start-up current for 10 msec max.
DC OUT (VSRC IN) - Terminal 10
For units which do not have PNP current sourcing outputs, this terminal
provides a DC output for sensor power (+12 VDC +/-15%). The
maximum sensor current is 100 mA.
For units with PNP current sourcing outputs, this terminal serves a dual
purpose depending on the application’s PNP output voltage level and
current requirements.
1. The terminal may be used as a +12 VDC output for sensor power.
In this case, the PNP output voltage level will be +12 VDC
(±15%). A maximum of 100 mA is available for the combination
of sensor current and PNP output sourcing current.
2. If a higher PNP output voltage level or additional output sourcing
current is desired, an external DC supply may be connected
between the “DC OUT (VSRC IN)” and “COMM.” terminals. This
supply will determine the PNP output voltage level, and must be
in the range of +13 to +30 VDC.
An external DC supply can also provide the additional output
sourcing current required in applications where two or more PNP
outputs are “ON” simultaneously. However, the maximum current
rating of 100 mA per individual output must not be exceeded,
regardless of external supply capacity.
3. MEMORY: Nonvolatile E2PROM retains all programmable parameters and
count values.
4. SENSOR POWER: +12 VDC (±15%) @ 100 mA max.
5. COUNT INPUTS A & B: Accepts count pulses from a variety of sources,
DIP switch selectable.
Current Sourcing: 3.9KΩpull-down, VIN max = 30 VDC
Current Sinking: 7.8KΩpull-up to 12 VDC; ISNK = 1.8 mA max.
Debounce: 50 Hz max.
Lo Bias: VIL = 1.5 VDC max., VIH = 3.75 VDC min.
Hi Bias: VIL = 5.5 VDC max., VIH = 7.5 VDC min.
6. MAX. COUNT RATE: Model dependent. All listed values are in KHz.
Note: Max. count rates for X2 & X4 modes are given for 50 % duty cycle
signals and quad signals with 90° phase shift.
Single Preset Model C48CS
Dual Preset Model C48CD
Batch Model C48CB
With Counter 2 configured as a Batch Counter (C2 ASn =bAtch)
Batch Model C48CB
With Counter 2 configured as a Total Counter (C2 ASn =totAL)
Prescaler Output Model C48CP
*- Inputs A & B rates summed.
7. USER INPUTS: Configurable as current sinking (active low) or current
sourcing (active high) inputs via a single plug jumper.
Current Sinking: VIL = 1.5 VDC max, 22 KΩpull-up to 5 VDC.
Current Sourcing: VIH = 3.5 VDC min., VIN max = 30 VDC; 22 KΩpull-
down.
Response Time = 10 msec max.
Inhibit Response Time = 250 μsec max.
8. OUTPUTS: (Output type and quantity, model dependent)
Solid-State:
NPN Open Collector: ISNK = 100 mA max. @ VOL = 1.1 VDC max.; VOH
= 30 VDC max.
PNP Open Collector: ISRC = 100 mA max.(See note); VOH = 12 VDC
±15% (using internal supply); VOH = 13 to 30 VDC (using external
supply).
Note: The internal supply of the C48C can provide a total of 100 mA for
the combination of sensor current and PNP output sourcing current.
The supply voltage is +12 VDC (±15%), which will be the PNP output
voltage level when using only the internal supply.
If additional PNP output sourcing current or a higher output voltage
level is desired, an external DC supply may be connected between the
“DC Out/In” and “Comm.” terminals. This supply will determine the
PNP output voltage level, and must be in the range of +13 to +30 VDC.
An external supply can provide the additional output sourcing
current required in applications where two or more outputs are “ON”
simultaneously. However, the maximum rating of 100 mA per individual
output must not be exceeded, regardless of external supply capacity.
N/AN/AN/AN/AN/A81.00000
N/AN/AN/AN/AN/A6.20.00001-0.99999
X4X2X1
QUAD
*
Ad-Sub
Ad-Ad
C2-Usr
C2-Ud
C1-Usr
C1-Ud
PRESCALER
VALUE
2.1448.63.68.51.00000
1.63.33.56.63.36.50.00001-0.99999
X4X2X1
QUAD
*
Ad-Sub
Ad-Ad
C2-Usr
C2-Ud
C1-Usr
C1-Ud
PRESCALER
VALUE
0.411.42.20.91.99.00001-9.99999
0.51.11.52.41.12.28.00001-9
0.61.21.62.61.12.47.00001-8
0.61.31.72.81.32.76.00001-7
0.71.51.93.21.42.95.00001-6
0.81.72.13.81.73.44.00001-5
122.44.224.13.00001-4
1.32.52.85.42.552.00001-3
1.633.2
3.7
6.63.26.51.00001-2
34.24.311.85.511.41.00000
2.23.68.44.18.30.00001-0.99999
X4X2X1
QUAD
*Ad-Sub
Ad-Ad
C2-Usr
C2-Ud
C1-Usr
C1-Ud
PRESCALER
VALUE
0.40.91.520.91.99.00001-9.99999
0.51.11.62.30.92.28.00001-9
0.61.21.82.41.12.27.00001-8
0.61.322.81.32.76.00001-7
0.71.42.23.21.42.95.00001-6
0.81.72.53.81.73.44.00001-5
122.84.424.13.00001-4
1.32.53.45.22.452.00001-3
1.63.246.63.26.51.00001-2
35.8611.55.711.51.00000
2.14.14.58.64.18.30.00001-0.99999
X4X2X1
QUAD
*Ad-Sub
Ad-Ad
C2-Usr
C2-Ud
C1-Usr
C1-Ud
PRESCALER
VALUE
PRESCALER
VALUE
C1-Usr
C1-Ud
C2-Usr
C2-Ud
*Ad-Sub
Ad-Ad
QUAD
X1 X2 X4
0.00001-0.99999 8.4 4.1 9.4 5.4 4.5 2.1
1.00000 12 5.9 12.4 6.5 6 3
1.00001-2 6.6 3.2 6.8 4.3 3.3 1.6
2.00001-3 5.3 2.6 5.6 3.7 2.6 1.3
3.00001-4 4.3 2.1 4.6 32.2 1.1
4.00001-5 3.6 1.8 3.8 2.7 1.8 0.9
5.00001-6 3.1 1.5 3.4 2.4 1.6 0.8
6.00001-7 2.8 1.4 3.2 2.1 1.4 0.7
7.00001-8 2.6 1.3 2.8 1.9 1.3 0.6
8.00001-9 2.3 1.1 2.4 1.8 1.1 0.5
9.00001-9.99999 2.1 12.3 1.7 1.1 0.5

B
180 www.redlion.net
8. OUTPUTS: (Output type and quantity, model dependent) Cont’d
Relay: Form A contact, Rating = 5 A @ 250 VAC, 30 VDC (resistive load),
1/10 HP @ 120 VAC (inductive load)
Relay Life Expectancy: 100,000 cycles min. at max. load rating
Programmable Timed Output: User selectable output time resolution.
0.01 Second Resolution: 0.01 to 99.99 sec, ± 0.01% +20 msec max.
(Prescalers less than 2)
0.1 Second Resolution: 0.1 to 999.9 sec, ± 0.01% + 100 msec (Prescalers
less than 2)
Note: For Prescaler values above 2, the timed delay output is affected by
the count speed (rate).
9. RS485 SERIAL COMMUNICATIONS (Optional): Up to 32 units can be
connected.
Baud Rate: Programmable from 1200 to 9600 baud
Address: Programmable from 0 to 99
Data Format: 10 Bit Frame, 1 start bit, 7 or 8 data bits, 1 or No Parity bit,
and 1 stop bit
Parity: Programmable for Odd (7 data bits), Even (7 data bits), or None (8
data bits)
10. CERTIFICATIONS AND COMPLIANCES:
UL Recognized Component, File #E137808
Recognized to U.S. and Canadian requirements under the Component
Recognition Program of Underwriters Laboratories, Inc.
ELECTROMAGNETIC COMPATIBILITY
Notes:
AC VERSIONS
1. A power line filter, RLC#LFIL0000 or equivalent, was installed when the
unit was DC powered.
DC VERSIONS
To insure compliance with the EMC standards listed above, do not connect
any wires from the terminal(s) labeled “COMM.” to the “DC-” supply
terminal (12), when powering the unit from a DC supply.
Refer to EMC Installation Guidelines section of the manual for additional
information.
11. ENVIRONMENTAL CONDITIONS:
Operating Temperature: 0°C to 50°C
Storage Temperature: -40°C to 70°C
Operating and Storage Humidity: 85% max. relative humidity
(non-condensing) from 0°C to 50°C.
Altitude: Up to 2000 meters
12. ELECTRICAL CONNECTIONS: Wire clamping screw terminals.
13. CONSTRUCTION: Black plastic case with collar style panel latch. The
panel latch can be installed for horizontal or vertical stacking. Black plastic
textured bezel with clear display viewing window. Unit assembly with circuit
boards can be removed from the case without removing the case from the
panel or disconnecting the wiring. Front panel meets NEMA 4X/IP65
requirements for indoor use, when properly installed. Installation Category
II, Pollution Degree 2.
14. WEIGHT: 6.0 oz (170 g)
SINGLE PRESET MODELS
The C48CS has a solid-state output that operates in parallel with a relay
output. The solid-state output is available as an NPN or PNP open collector
transistor.
DUAL PRESET MODELS
The C48CD has two outputs that are activated from presets 1 and 2
respectively. These outputs can be relay outputs, or solid-state outputs. The
solid-state outputs are available as NPN or PNP open-collector transistors. Units
with solid-state outputs can be ordered with an optional prescaler output
(C48CP).
3 PRESET BATCH MODELS
The C48CB has a secondary counter that can be used for batch counting, or
to keep a total count. This second counter can be programmed to operate in one
of eight operating modes. Outputs 1 and 2 are assigned to the primary process
counter (C1). Output 3 is assigned to the secondary Batch/Total counter (C2).
The three preset batch unit can be ordered with solid-state or relay outputs.
Units with solid-state outputs have a User Input 2 terminal available. The relay
model has a relay output for Output 2 and Output 3 (Batch/Total). Output 1 is
available only as solid-state.
PRESCALER OUTPUT MODELS
The C48CP is a dual preset counter with solid-state outputs. These models
have an additional output configured as a prescaler output. Each time the least
significant digit of the display increments, the Prescaler output provides a pulse.
The width of this pulse is variable in that the output will turn off after a
programmed number of count input pulses has occurred (1-9). The Prescaler
output can also be programmed to activate when the 10’s digit of the display
increments, rather than the least significant digit.
Note: Prescaler Output models are limited to two programmable count modes
and prescaler values of 1.00000 or less. See Count Input Modes for available
modes.
FRONT PANEL FEATURES
The C48 Counters feature a dual line display. In the normal operating mode
(main display), the count or batch/total value is shown on the top line and
presets, prescaler, or output time values are shown on the bottom line. The
bottom line values can be programmed to be viewable only, viewable and
changeable, or locked (not viewable) from the main display.
In the operating mode, the presets, prescaler, and output time values are
accessible providing that these values are not programmed for ‘L’ocked. Values
that are accessible (changeable) can be changed immediately when viewed in
the secondary display.
FRONT PANEL KEYPAD
%- Performs user Programmed Function
- Cycles through secondary displays.
"- Enters Protected Value Menu or Programming Mode
when pushed and held for 2 seconds.
- Scrolls through programming parameters.
- Enters Data Values.
- Selects next available mode in programming mode.
#- Increments digit in Digit Entry mode.
- Increments value in Auto Scrolling entry mode.
- Selects Digit to right when in Digit Entry mode.
$- Decrements value in Auto Scrolling entry mode.
Enclosure class AEN 55011RF interference
Emissions to EN 50081-2
Level 3; 10 V/mENV 50204Simulation of cordless telephone
150 KHz - 80 MHz
Level 3; 10 V/rms EN 61000-4-6RF conducted interference
Level 3; 2 Kv power
Level 4; 2 Kv I/OEN 61000-4-4Fast transients (burst)
80 MHz - 1 GHz
Level 3; 10 V/m EN 61000-4-3Electromagnetic RF fields
Level 3; 8 Kv air
Level 2; 4 Kv contactEN 61000-4-2Electrostatic discharge
200 Hz, 50% duty cycle
Immunity to EN 50082-2
900 MHz ± 5 MHz

B
1811-717-767-6511
USER INTERFACE/PROGRAMMING MODES
The operating modes of the C48C are programmed using the front panel
keypad. To enter the programming menu, the "key is pushed and held for 2
seconds. Within the programming menu, the "key is used to sequence through
the list of programming parameters.
PROGRAMMING MENU
Program Security/Operator Accessible Values
The Program Disable DIP switch, programmable code value, User Input
(programmed for Program Disable), and the Accessible Value parameters
provide various levels of security against unauthorized programming changes.
The accessible values parameters provide individual access or locking of each
value.
Protected Value Menu
The Protected Value Menu allows access to selected presets, prescaler and
timed output values without having them viewable or changeable from the main
display. To enter the protected menu, the "key is pressed and held, and a
programmed code value is entered.
Programming Numeric Data Values
The Presets may be accessible when the unit is in its operating mode.
Pressing the "key will sequence the secondary display through the available
preset, prescaler and Batch/Total count values.
To change a data value it must be visible on the secondary display. Pressing
the $or #key will allow changing of the value. If the data entry method has
been set to “digit entry”, pressing the $key multiple times will select other
digits. Pressing the #key will increment the selected digit. If the data entry
method is set to “Auto scrolling”, the data value can be changed by pressing and
holding the #or $keys to change one or all digits of the display.The data
value will be entered when the "key is pushed, or the old value will be
retained if no key activity is detected for 10 seconds.
Count Input Modes - Cnt In
This parameter controls the count/control function of Inputs A and B. It also
allows Input B to be used as a User Input with the same programmable
functions as the dedicated User Inputs.
* These are the only count input modes available on the Prescaler Output
Model.
Programmable Operating Modes - OPEr
These modes determine the operational characteristics of the counter. In the
tables, 01, 02, and 03, refer to Outputs 1,2, and 3 respectively.
1 - Manual Reset to Zero, Latched Output
2 - Manual Reset to Zero, Timed Output
3 - Manual Reset to Preset, Latched Output
4 - Manual Reset to Preset, Timed Output
5 - Auto Reset to Zero, Timed Output
6 - Auto Reset to Preset, Timed Output
7 - Auto Reset to Zero at Timed Output End
8 - Auto Reset to Preset at Timed Output End
SINGLE PRESET OPERATING MODES
Auto Reset to Preset 3 at 03 Timed Output End-8
Auto Reset to Preset 3, 03 Timed-7
Auto Reset to Zero at 03 Timed Output End-6
Auto Reset to Zero, 03 Timed-5
Manual Reset to Preset 3, 03 Timed
COUNTER 2 OPERATING MODES (C48CB Only)
-4
Manual Reset to Preset 3, 03 Latched-3
Manual Reset to Zero, 03 Timed-2
Manual Reset to Zero, 03 Latched-1
Auto Reset to Preset 2 at 02 End, 01 off at 02, 02 Timed
Auto Reset to Zero at 02 End, 01 off at 02, 02 Timed
Manual Reset to Preset 2, 01 and 02 Timed
-
-
-
18
16
8
Auto Reset to Preset 2 at 02 End, 01 and 02 Timed
Auto Reset to Zero at 02 End, 01 and 02 Timed
Manual Reset to Preset 2, 01 Timed, 02 Latched
-
-
-
17
15
7
Auto Reset to Preset 2, 01 off at 02, 02 Timed
Manual Reset to Preset 2, Latched Outputs
-
-
14
6
Auto Reset to Preset 2, 01 and 02 Timed
Manual Reset to Zero, 01 off at 02, 02 Timed
-
-
13
5
Auto Reset to Zero, 01 off at 02, 02 Timed
Manual Reset to Zero, 01 off at 02, 02 Latched
-
-
12
4
Auto Reset to Zero, 01 and 02 Timed
Manual Reset to Zero, 01 and 02 Timed
-
-
11
3
Manual Reset to Preset 2, 01 off at 02, 02 Timed
Manual Reset to Zero, 01 Timed, 02 Latched
-
-
10
2
Manual Reset to Preset 2, 01 off at 02, 02 Latched
Manual Reset to Zero, Latched Outputs
-
-
9
1
DUAL PRESET AND BATCH COUNTER 1 OPERATING MODES
MODE INPUT A INPUT B
C1-USr Count User Input *
C2-USr Count (X2) User Input
C1-Ud Count Up/Dn Control *
C2-Ud Count (X2) Up/Dn Control
Ad-Sub Add Count Subtract Count
Ad-Ad Add Count Add Count
qUAd 1 Quad X1 Inputs
qUAd 2 Quad X2 Inputs
qUAd 4 Quad X4 Inputs
Ac PSc -Accessibility of Prescaler Value
PScALr -Prescaler Value
dEc Pt -Decimal Point Position
Cnt In -Count Input Modes
OPEr 1 -Counter 1 Operating Mode
C2 ASn -Counter 2 Assignment (C48CB only)
OPEr 2 -Counter 2 Operating Mode (C48CB only)
Ac PrS -Accessibility of Preset Values
PrESEt -Preset 1, 2, and 3 Values
PltrAC -P1 Track P2 (not available on C48CS)
Ac Out -Accessibility of Output Time Values
OutPut -Output 1, 2, and 3 Time Values
rEVAnu -Reverse Output Annunciator Logic
rEVOut -Reverse Output/Relay Logic
OutP.uP -Power Up Output State
USrIn1 -User Input 1
USrIn2 -User Input 2 (Not available on Batch Relay Models)
USrInb -User Input b
USr F1 -User F1 Key
CodE -Programming/Protected Parameter menu Code
ScroLL -Scroll Display
SErSEt -Serial Baud Rate & Parity Settings
SErAdr -Serial Unit Address
SErAbr -Abbreviate Serial Mnemonics
PrnOPt -Print Options
PrnrSt -Print & Reset Count Value
PScOAt -Prescaler Output Pulse (C48CP only)
PScLEn -Prescaler Output Pulse Length {width} (C48CP only)
FAcSEt -Load Factory Default Settings
OutrES -Output Resolution
EntrY -Digit or Auto Scrolling Data Entry Mode
(RS485 option only)

B
182 www.redlion.net
SLOW DOWN & CUT TO LENGTH WITH TOTAL FOOTAGE
To improve production efficiency, a wallpaper manufacturing plant is
installing cut to length counters on the roll form machines. Currently, electro-
mechanical counters are used for length measurements. The operator slows
the machine down upon arriving at the desired length, stops and then cuts. The
addition of the C48CB batch counters eliminates the operator’s manual
observation and control.
The operator programs the required cut length as Preset 2. Preset 1 is
preprogrammed for tracking and will automatically follow Preset 2. Preset 1
is used as the slow down, and is set for a value 0.25 yards less than Preset 2.
The process count is programmed to automatically reset at the Preset 2 cut
length of 11.00 yards, and begin counting for the next roll. Counter 2 is
programmed as a totalizer and is recorded and reset (via key switch) at the end
of the operator’s shift. The C48CB was ordered with the RS-485 serial
communication option. Future plans include a data acquisition program to
interrogate the C48CB’s. A 100 ppr rotary pulse generator is shaft coupled to
a 4" pinch roller for length measurement. Display units desired is 0.01 yards.
Program Security features are set to allow access to Preset 2 only. This allows
the operator to change the required cut length, but prevents acidental changes
to other programming parameters that may adversely affect process operation.
After all programming is complete, the Program Disable DIP switch is moved
to the up position to enable the Program Security function.
Circumference Of Pinch Roller:
circumference = π×diameter
12.56636 = 3.14159 ×4.00
Pulses Per Yard:
⎯
36
1
i
y
n
a
c
r
h
d
es
⎯
×
⎯
12.
1
56
re
6
v
36”
⎯
= 2.8647913 rev/yard
2.8647913 rev/yard × 100 ppr/rev = 286.47913 pulses/yard
Prescaler:
Prescaler =
⎯
nu
D
m
i
b
sp
e
l
r
a
o
y
f
u
p
n
u
i
l
t
s
s
es
⎯
=
⎯
286
1
.4
0
7
0
913
⎯
Prescaler = 0.34907
Products:
C48CB108
RPGQ0100
PROGRAMMING
EntrY AutoSc
Ac PSc -L (locked)
PScALr 0.34907
dEc Pt ----.--
Cnt In qUAd 1
OPEr 1 12
C2 ASn totAL
OPEr 2 02
Ac PrS -L-y-L
PrESEt PRS1 10.75 (value 0.25 less than PRS2 for slowdown)
PrESEt PRS2 11.00 (cut length)
PrESEt PRS3 9000.00 (Set high so output does not activate)
P1trAc yES
Ac Out -L-L-L
OutrES 0.01SEC
OutPut 1t 0.10
OutPut 2t 1.00
OutPut 3t 0.10
rEVOut -n-n-n
rEVAnu -n-n-n
OutP.uP -F-F-F
USrIn1 rSt.2-E
USr F1 rSt.-E
CodE 003
ScroLL no
SErSEt 96o
SErAdr 00
SErAbr no
PrnOPt 08
PrnrSt no
FAcSEt no
MULTIPLE UNIT STACKING
The C48C is designed for close spacing of multiple units. Units can be
stacked either horizontally or vertically. For vertical stacking, install the panel
latch with the screws to the sides of the unit. For horizontal stacking, the panel
latch screws should be at the top and bottom of the unit. The minimum spacing
from center line to center line of the units is 1.96" (49.8 mm). This spacing is
the same for vertical or horizontal stacking.
Note: When stacking units, provide adequate panel ventilation to ensure that
the maximum operating temperature range is not exceeded.
PANEL CUT-OUT SPACING FOR MULTIPLE UNIT STACKING.
HORIZONTAL ARRANGEMENT SHOWN.
PANEL LATCH INSTALLED FOR VERTICAL
UNIT STACKING
PANEL LATCH INSTALLED FOR
HORIZONTAL UNIT STACKING

B
1831-717-767-6511
ACCESSORIES
MODEL NO. DESCRIPTION RS485
85 to 250 VAC18-36 VDC/24 VAC
C48CS 1 Preset Counter, Reflective LCD Yes Yes No C48CS003C48CS013
1 Preset Counter, Backlit LCD Yes Yes No C48CS103C48CS113
C48CD
2 Preset Counter, Reflective LCD Yes No Yes C48CD005C48CD015
2 Preset Counter, Reflective LCD No Yes No C48CD002C48CD012
2 Preset Counter, Reflective LCD No Yes Yes C48CD007C48CD017
2 Preset Counter, Backlit LCD Yes No No C48CD100C48CD110
2 Preset Counter, Backlit LCD Yes No Yes C48CD105C48CD115
2 Preset Counter, Backlit LCD No Yes No C48CD102C48CD112
2 Preset Counter w/Prescaler Output, Reflective LCD
C48CP
2 Preset Counter, Backlit LCD
Yes
No
No
Yes
Yes
Yes
C48CP005C48CP015
C48CD107C48CD117
2 Preset Counter w/Prescaler Output, Backlit LCD Yes No No C48CP100C48CP110
2 Preset Counter w/Prescaler Output, Backlit LCD Yes No Ye s C48CP105C48CP115
C48CB
3 Preset Batch Counter, Reflective LCD Yes (O1) Yes No C48CB003N/A
3 Preset Batch Counter, Reflective LCD Yes (O1) Yes Yes C48CB008N/A
3 Preset Batch Counter, Reflective LCD Yes No Yes C48CB005N/A
3 Preset Batch Counter, Backlit LCD Yes (O1) Yes No C48CB103N/A
3 Preset Batch Counter, Backlit LCD Yes (O1) Yes Yes C48CB108N/A
3 Preset Batch Counter, Backlit LCD Yes No No C48CB100C48CB110
3 Preset Batch Counter, Backlit LCD Yes No Yes C48CB105N/A
*NPN O.C.
OUTPUT(S)
ORDERING INFORMATION
Note: On Batch Relay Models, Outputs 2 and 3 are Relays, and Output 1 (O1) is a solid-state output.
*PNP O.C. output(s) versions available, contact the factory.
DESCRIPTION NPN O.C.
OUTPUT(S)
PNP O.C.
OUTPUT(S)
RELAY
OUTPUT(S) PART NUMBER
Single Preset
Yes No Yes RBC48001
No Yes Yes RBC48002
Dual Preset No No Yes RBC48003
RBC48
Batch
No
Yes
Yes
No
Yes
Yes
RBC48005
RBC48004
MODEL NO.
RELAY OUTPUT BOARDS
RELAY OUTPUT(S)
(Note)
PART NUMBERS FOR AVAILABLE
SUPPLY VOLTAGES
MODEL DESCRIPTION PART NUMBER
SFC48 PC Configuration Software for Windows 3.x and 95 (3.5" disk) (for RS-485 Models) SFC48

B
184 www.redlion.net
z6 DIGIT, 0.56" HIGH RED LED DISPLAY
zPROGRAMMABLE SCALING FOR COUNT AND RATE
zBI-DIRECTIONAL COUNTING, UP/DOWN CONTROL
zQUADRATURE SENSING (UP TO 4 TIMES RESOLUTION)
zBUILT-IN BATCH COUNTING CAPABILITY
zPROGRAMMABLE USER INPUT
zDUAL 5 AMP FORM C RELAYS
zUNIVERSALLY POWERED
zNEMA 4X/IP65 SEALED FRONT BEZEL
MODEL PAXLCR - 1/8 DIN PAX LITE DUAL COUNTER AND RATE METER
This is a brief overview of the PAXLCR. For complete specifications and programming information, see the
PAX Lite Dual Counter and Rate Meter Bulletin starting on page 125.
ANNUNCIATORS:
A - Counter A value
B - Counter B value (dual count or batch)
- Rate value is displayed with no designator
SP1 - Indicates setpoint 1 output status
SP2 - Indicates setpoint 2 output status
COUNTER DISPLAYS:
Counter A: 6-digits, enabled in all count modes
Display Designator: “A” to the left side of the display
Display Range: -99999 to 999999
Counter B: 6-digits, enabled in Dual Count mode or Batch Counter
Display Designator: “B” to the left side of the display
Display Range: 0 to 999999 (positive count only)
Overflow Indication: Display “0-0-” alternates with overflowed count value
Maximum Count Rates: 50% duty cycle, count mode dependent.
With setpoints disabled: 25 KHz, all modes except Quadrature x4 (23 KHz).
With setpoint(s) enabled: 20 KHz, all modes except Dual Counter (14 KHz),
Quadrature x2 (13 KHz) and Quadrature x4 (12 KHz).
RATE DISPLAY: 6-digits, may be enabled or disabled in any count mode
Display Range: 0 to 999999
Over Range Display: “0-0-”
Maximum Frequency: 25 KHz
Minimum Frequency: 0.01 Hz
Accuracy: ±0.01%
COUNT/RATE SIGNAL INPUTS (INPUT A and INPUT B):
See Section 2.0 Setting the DIP Switches for complete Input specifications.
DIP switch selectable inputs accept pulses from a variety of sources. Both
inputs allow selectable active low or active high logic, and selectable input
filtering for low frequency signals or switch contact debounce.
Input A: Logic level or magnetic pickup signals.
Trigger levels: VIL = 1.25 V max; VIH = 2.75 V min; VMAX = 28 VDC
Mag. pickup sensitivity: 200 mV peak, 100 mV hysteresis, 40 V peak max.
Input B: Logic level signals only
Trigger levels: VIL = 1.0 V max; VIH = 2.4 V min; VMAX = 28 VDC

B
1851-717-767-6511
C
C
US LISTED
US LISTED
UL
R
IND. CONT. EQ.
51EB
ANNUNCIATORS:
A - Counter A
B - Counter B
C - Counter C
- Upper significant digit display of counter
SP1 - setpoint 1 output state
SP2 - setpoint 2 output state
SP3 - setpoint 3 output state
SP4 - setpoint 4 output state
COUNTER DISPLAYS:
Maximum display: 8 digits: ± 99999999 (greater than 6 digits display
Alternates between high order and low order.)
INPUTS A and B:
DIP switch selectable to accept pulses from a variety of sources including
switch contacts, TTL outputs, magnetic pickups and all standard RLC
sensors.
LOGIC: Input trigger levels VIL = 1.5 V max.; VIH = 3.75 V min.
Current sinking: Internal 7.8 KΩpull-up to +12 VDC, IMAX = 1.9 mA.
Current sourcing: Internal 3.9 KΩpull-down, 7.3 mA max. @ 28 VDC,
VMAX = 30 VDC.
Filter: Damping capacitor provided for switch contact bounce. Limits
input frequency to 50 Hz and input pulse widths to 10 msec. minimum.
DUAL COUNT MODES:
When any dual count mode is used, then User Inputs 1 and/or 2 will
accept the second signal of each signal pair. The user inputs do not
have the Logic/Mag, HI/LO Freq, and Sink/Source input setup
switches. The user inputs are inherently a logic input with no low
frequency filtering. Any mechanical contacts used for these inputs in a
dual count mode must be debounced externally. The user input may
only be selected for sink/source by the User Jumper placement.
O6-DIGIT 0.56" RED SUNLIGHT READABLE OR STANDARD
GREEN DISPLAY (Alternating 8 digits for counting)
O
DUAL COUNT QUAD INPUTS
O
UP TO 3 COUNT DISPLAYS
O
FOUR SETPOINT ALARM OUTPUTS (W/Plug-in card)
PAXC SPECIFICATIONS
MAXIMUM SIGNAL FREQUENCIES:
To determine the maximum frequency for the input(s), first answer the
questions with a yes (Y) or no (N). Next determine the Count Mode to be
used for the counter(s). If dual counters are used with different Count Modes,
then the lowest frequency applies to both counters.
Notes:
1. Counter Modes are explained in the Module 1 programming section.
2. Listed values are with frequency DIP switch set on HI frequency.
FUNCTION QUESTIONS Dual: Counter A & BSingle: Counter A or B
Are any setpoints used? NN Y Y NN Y Y
Is Counter C used? NY N Y N Y N Y
COUNT MODE (Values are in KHz) (Values are in KHz)
Count x1 34 25 18 15 13 12 97.5
Count x2 17 13 9 7 9 7 5 4
Quadrature x1 22 19 12 10 7643.5
Quadrature x2 17 13 9 7 7 6 4 3.5
Quadrature x4 8 6 4 3
MODEL PAXC - 1/8 DIN COUNTER
This is a brief overview of the PAXC. For complete specifications and programming information, see the
PAX Digital Input Panel Meters Bulletin starting on page 137.

B
186 www.redlion.net
MODEL PAXI - 1/8 DIN DUAL COUNTER/RATE METER
ANNUNCIATORS:
A - Counter A
B - Counter B
C - Counter C
S- Rate
)- Maximum (High) Rate
-- Minimum (Low) Rate
- Upper significant digit display of counter
SP1 - setpoint 1 output state
SP2 - setpoint 2 output state
SP3 - setpoint 3 output state
SP4 - setpoint 4 output state
RATE DISPLAY:
Accuracy: ±0.01%
Minimum Frequency: 0.01 Hz
Maximum Frequency: see Max Signal Frequencies Table.
Maximum Display: 5 Digits: 99999
Adjustable Display (low) Update: 0.1 to 99.9 seconds
Over Range Display: “ ”
COUNTER DISPLAYS:
Maximum display: 8 digits: ± 99999999 (greater than 6 digits display
Alternates between high order and low order.)
INPUTS A and B:
DIP switch selectable to accept pulses from a variety of sources
including switch contacts, TTL outputs, magnetic pickups and all
standard RLC sensors.
LOGIC: Input trigger levels VIL = 1.5 V max.; VIH = 3.75 V min.
Current sinking: Internal 7.8 KΩpull-up to +12 VDC, IMAX = 1.9 mA.
Current sourcing: Internal 3.9 KΩpull-down, 7.3 mA max. @ 28 VDC,
VMAX = 30 VDC.
Filter: Damping capacitor provided for switch contact bounce. Limits input
frequency to 50 Hz and input pulse widths to 10 msec. minimum.
MAGNETIC PICKUP:
Sensitivity: 200 mV peak
Hysteresis: 100 mV
Input impedance: 3.9 KΩ@ 60 Hz
Maximum input voltage: ±40 V peak, 30 Vrms
DUAL COUNT MODES:
When any dual count mode is used, then User Inputs 1 and/or 2 will
accept the second signal of each signal pair. The user inputs do not have
the Logic/Mag, HI/LO Freq, and Sink/Source input setup switches. The
user inputs are inherently a logic input with no low frequency filtering.
Any mechanical contacts used for these inputs in a dual count mode
must be debounced externally. The user input may only be selected for
sink/source by the User Jumper placement.
PRESCALER OUTPUT:
NPN Open Collector: ISNK = 100 mA max. @ VOL = 1 VDC max. VOH = 30
VDC max. With duty cycle of 25% min. and 50 % max.
PAXI SPECIFICATIONS
MAXIMUM SIGNAL FREQUENCIES TABLE
To determine the maximum frequency for the input(s), first answer the questions with a yes (Y) or no (N). Next determine the Count Mode
to be used for the counter(s). If dual counters are used with different Count Modes, then the lowest frequency applies to both counters.
OCOUNTER, DUAL COUNTER, RATE AND SLAVE DISPLAY
O6-DIGIT 0.56" RED SUNLIGHT READABLE OR STANDARD
GREEN DISPLAY
OVARIABLE INTENSITY DISPLAY
O10 POINT SCALING (FOR NON-LINEAR PROCESSES)
OFOUR SETPOINT ALARM OUTPUTS (W/OPTION CARD)
ORETRANSMITTED ANALOG OUTPUT (W/OPTION CARD)
OCOMMUNICATION AND BUS CAPABILITIES (W/OPTION CARD)
OBUS CAPABILITIES; DEVICENET, MODBUS, AND PROFIBUS-DP
OCRIMSON PROGRAMMING SOFTWARE
N/A21N/A34N/A21N/A34Rate Only
34346868Quadrature x4
3 *3.5 *3.5 *4 *5 *6 *6 *7 *687912161317Quadrature x2
3 *3.5 *3.5 *4 *5 *6 *6 *7 *1011101217201922Quadrature x1
4 *5 *4 *5 *7 *9 *7 *9 *787912161317Count x2
797.59111312131113151817212534Count x1
(Values are in KHz)(Values are in KHz)(Values are in KHz)(Values are in KHz)COUNT MODE
YNYNYNYNYNYNYNYNIs Counter C used?
YYNNYYNNYYNNYYNNIs Prescaler Output used?
YYYYNNNNYYYYNNNNAre any setpoints used?
Dual: Counter A & B or Rate not assigned to active single counterSingle: Counter A or B (with/without rate) or Rate onlyFUNCTION QUESTIONS
This is a brief overview of the PAXI. For complete specifications and programming information, see the
PAX Digital Input Panel Meters Bulletin starting on page 137.
C
C
US LISTED
US LISTED
UL
R
IND. CONT. EQ.
51EB

B
1871-717-767-6511
MODEL LGS -Single Preset Counter/Rate Indicator
MODEL LGD - Dual Preset Counter/Rate Indicator
MODEL LGB - Four Preset Batch/Counter/Rate Indicator
MODEL LGM - Six Preset Counter/Rate Indicator
DESCRIPTION
The Legend Series consist of four different models that are multi-function
count and rate indicators. There can be up to six presets and six programmable
outputs depending upon the unit. The count and rate displays have separate
programmable decimal point settings. The unit also has rate peak and valley
displays that show the highest and lowest rate readings since they were reset
(peak and valley readings are not retained when power is removed). There are
five Programmable User Inputs, three external remote inputs and two front
panel function keys, which allow the user to select from a variety of functions.
The two line by eight character alphanumeric display with English menus,
allows for easy viewing and simple programming of the units. The four scroll
through indication displays can be programmed to show other parameters and if
desired, automatically scroll at one of the two programmable rates. A program
disable DIP switch used with an external User Input can be utilized to protect
the settings and guarantee that no unwanted changes occur during operation.
The standard RS485 serial communication feature provides the capability of
two-way communication between the Legend unit and other compatible
equipment such as a printer, a programmable controller, or a host computer.
The Baud Rate is programmable and ranges from 1200 to 9600. The unit
address number can be programmed from 00-99. Up to thirty-two units can be
installed on a single pair of wires, each with an individual address. The Count
value(s), Preset(s), Rate, Peak, Valley, etc can all be interrogated or changed.
The output(s), counters(s), rate and peak readings can be reset, by sending the
proper command codes via serial communications or by activating a
programmable user input. When a user input, selected for the print request
function, is activated, the values specified in the Program Print Options module
can be transmitted to a printer.
Optional Programming Software (SFLGP) for IBM®compatible PCs is
available to program all of the Legend configuration parameters such as User
Inputs, count modes, etc. The software allows unit configurations to be created,
uploaded, downloaded, and saved to a file for rapid programming of the Legend.
The Legend offers a choice of seven programmable counting modes for use
in applications requiring Bi-directional, Anti-coincidence, and Quadrature
counting. A separate external inhibit terminal can be used in conjunction with
any of the count modes. The input circuitry is switch selectable to accept signals
from a variety of input sources. A unit may be programmed to register counts on
both edges of the input signal providing frequency doubling capability.
A Legend unit will indicate an overflow condition when the capacity of a
Count display (Process, Batch, or Total) is exceeded, by flashing the word
“OVERFLOW” in the appropriate display.
All count values and program setting are retained when unit power is
removed in nonvolatile memory.
LEGEND SERIES
DIMENSIONS In inches (mm) Note: Recommended minimum clearance (behind the panel) for
mounting clip installation is 3.0" (76.2) H x 4.0" (101.6) W. PANEL CUT-OUT
O2X8 TRANSMISSIVE LCD, NEGATIVE IMAGE, WITH LED
BACKLIGHTING
OFOUR USER PROGRAMMABLE INDICATION DISPLAYS
OOPTIONAL PROGRAMMING SOFTWARE
OENGLISH PROGRAMMING MENUS
ORATE, PEAK & VALLEY INDICATION
OABILITY TO LOCKOUT OPERATOR ACCESS TO PROGRAMMING
PARAMETERS
OACCEPTS COUNT RATES UP TO 23 KHz (for Model LGS)
OBI-DIRECTIONAL COUNTING, UP/DOWN CONTROL
OQUADRATURE SENSING (Up to 4 times resolution)
OCOUNT INHIBIT PIN AVAILABLE FOR ALL COUNT MODES
OSEPARATE INPUT SCALING FOR RATE & COUNT
OPROGRAMMABLE CONTROL INPUTS
OINPUTS ARE SWITCH SELECTABLE FOR MAGNETIC PICKUPS
ORELAY OUTPUT(S) (Field Replaceable)
OOUTPUT(S) ASSIGNABLE TO COUNT OR RATE
OSOLID STATE CURRENT SINKING OUTPUT(S)
O115/230 VAC SWITCH SELECTABLE
ORS485 SERIAL COMMUNICATIONS
ONONVOLATILE MEMORY
ONEMA 4X/IP65 SEALED FRONT PANEL BEZEL
UL Recognized Component,
File # E137808

B
188 www.redlion.net
DESCRIPTION (Cont’d)
A Legend unit will indicate an overflow condition when the capacity of a
Count display (Process, Batch, or Total) is exceeded, by flashing the word
“OVERFLOW” in the appropriate display.
All count values and program setting are retained when unit power is
removed in nonvolatile memory.
The choice of several reset cycle modes along with the compatibility of count
and control inputs to other RLC products, provides added versatility for stand-
alone and system counter needs.
The rate input uses the time interval method (1/tau) to calculate the rate value.
This method insures high resolution at all input rates. The unit counts input
pulses and after the programmable minimum update time elapses and the next
count edge occurs, the unit will take the number of edges that occurred during
the elapsed time to calculate the rate value. The minimum update time can be as
low as 0.1 second per update, enabling quick response to rate changes. At slower
rates, averaging can be accomplished by programming the Minimum and
Maximum Update Time for the desired response. Extensive scaling capabilities
allow practically any reading at very slow input rates.
The construction of the Legend series is a light weight high impact plastic
case with a clear viewing window. The sealed front panel with the silicone
rubber keypad meets NEMA 4X/IP65 specifications for wash-down and/or
dusty environments, when properly installed. Plug-in style terminal blocks
simplify installation and wiring change-outs.
SAFETY SUMMARY
All safety related regulations, local codes and instructions that appear in the
manual or on equipment must be observed to ensure personal safety and to
prevent damage to either the instrument or equipment connected to it. If
equipment is used in a manner not specified by the manufacturer, the protection
provided by the equipment may be impaired.
Do not use this unit to directly command motors, valves, or other actuators
not equipped with safeguards. To do so, can be potentially harmful to persons or
equipment in the event of a fault to the unit.
MODELS - LGS & LGD
The single preset unit has one NPN open collector output and the dual preset
unit has two outputs which are activated from presets 1 and 2 respectively. Each
output can be assigned to either Rate or Count display. An optional relay board
can be installed that operates in parallel with the solid state output(s).
MODEL - LGB
The process counter is used to monitor the progress of the count within the
batch. Presets 1 and 2 are assigned to the Process Counter and activate relay
outputs 1 and 2 respectively.
Presets 3 and 4 can be assigned to either the Batch Counter, Totalizer, or Rate
indicator. Presets 3 and 4 activate the NPN open collector outputs O3-SNK and
O4-SNK respectively.
MODEL - LGM
The Multi Preset unit has six Presets (1-6) which control NPN open collector
outputs 01-SNK to 06-SNK respectively. Preset one through four are assigned
to the count display. Presets 5 and 6 can be assigned to either the Rate or Count
display.
SPECIFICATIONS
1. DISPLAY: 2x8, 0.3" (7 mm) high characters, negative image transmissive
LCD, with yellow/green or red LED backlighting.
2. POWER:
AC Operation: 115/230 VAC ±10%, 50/60 Hz, 10 VA, switch selectable.
DC Operation: +12 VDC ±20% @ 250 mA.
3. MEMORY: Non-volatile memory retains all programming information.
Count and Preset values are written to non-volatile memory when power is
interrupted. All other programming parameters are written to memory when
programming mode is exited. If power is removed while in the programming
menus, the parameters are restored to previously saved settings.
Data Retention: 10 years minimum
4. SENSOR POWER: +12 VDC ±25% @ 100 mA.
5. INPUTS A and B: DIP Switch selectable to accept count pulses from a
variety of sources including switch contacts, outputs from CMOS or TTL
circuits, and all standard RLC sensors.
LOGIC: Input trigger levels VIL = 1.5 VMAX; VIH = 3.75 VMIN.
Current sinking: Internal 7.8 KΩpulled up internally to +12 VDC,
IMAX = 1.6 mA.
Current sourcing: Internal 3.9 KΩpull-down, 7.3 mA @ 28 VDCMAX.
Debounce: Damping capacitor provided for switch contact bounce.
Limits count speed to 50 Hz and input pulse widths to 10 msec min.
MAGNETIC PICKUP:
Sensitivity: 200 mV peak.
Hysteresis: 100 mV.
Input impedance: 3.9 KΩ@ 60 Hz.
Maximum input voltage: ±50 Vp
Note: For magnetic pickup input, the sink/source DIP switch must be in the
SRC position.
6. RATE ACCURACY: ±0.01%
7. RATE MINIMUM INPUT FREQUENCY: 0.01 Hz.
8. MAXIMUM COUNT RATE IN KHz:
Notes:
1. Maximum count rates given are for Process counter set for Auto reset with
the auto cycle preset set to an equivalent of 100 count pulses or greater.
With auto cycle presets less than 100 count pulses, with Count SF = 0.5000
and Count Scale Multiplier = X1, would be 50.
2. Maximum count rate given for X2 & X4 count modes are given for 50%
duty cycle signals and Quad signals with 90ophase shift.
*Inputs A & B count rates summed.
9. CONTROL INPUTS:
Programmable user inputs (3): Internal 10 KΩpull-up to +5 VDC,
VIL = 1.0 VMAX; VIH = 4.0 VMIN, response time = 10 msec.
Inhibit: Internal 10 KΩpull-up to +5 VDC, VIL = 1.0MAX; VIH = 4.0 VMIN.
10. SERIAL COMMUNICATIONS:
Type: RS-485 Multi-point Balanced Interface (2 Wire).
(Can connect up to 32 units on a single pair of wires)
Baud Rate: Programmable from 1200 to 9600.
Maximum Addresses: Programmable from 00 to 99.
(Actual number on a single pair of wires is limited by serial hardware
specifications)
Transmit Delay: Programmable for 0.002 or 0.100 second.
Data Format: 10 Bit Frame; 1 start bit, 7 data bits, 1 parity bit, and 1 stop
bit. Parity is programmable for either ODD, EVEN, or No Parity.
11. OUTPUT(S):
Solid-State: Current sinking NPN open collector transistor.
VCE = 1VSAT @ 100 mA max. VOH = 30 VDC max.
(Internal Zener Diode Protection).
Relay(s): Mounted on field-replaceable P.C. board. Form C contacts rated at
5 amps @ 120 VAC/240 VAC or 28 VDC (resistive load), 1/8 H.P. @ 120
VAC (inductive load). The operate time is 5 msec nominal and the release
time is 3 msec nominal.
Programmable Timed Output(s): Programmable time ranges from 0.01 to
99.99 seconds, ±0.05% - 11 msec max.
12. CERTIFICATIONS AND COMPLIANCES:
SAFETY
UL Recognized Component, File #E137808, UL508, CSA 22.2 No. 14
Recognized to U.S. and Canadian requirements under the Component
Recognition Program of Underwriters Laboratories, Inc.
Type 4X Indoor Enclosure rating (Face only), UL50
IECEE CB Scheme Test Certificate # UL1581-176645/USA,
CB Scheme Test Report # 97ME50052-081391
Issued by Underwriters Laboratories, Inc,
IEC 61010-1, EN 61010-1: Safety requirements for electrical equipment
for measurement, control, and laboratory use, Part 1.
IP65 Enclosure rating (Face only), IEC529
ELECTROMAGNETIC COMPATIBILITY
Power frequency magnetic fields EN 61000-4-8 Level 4; 30 A/m
Immunity to EN 50082-2
Electrostatic discharge EN 61000-4-2
Level 3; 8 Kv air
Level 2; 4 Kv contact
Electromagnetic RF fields EN 61000-4-3 Level 3; 10 V/m
80 MHz - 1 GHz
Fast transients (burst) EN 61000-4-4 Level 4; 2 Kv I/O1
Level 3; 2 Kv power
RF conducted interference EN 61000-4-6 Level 3; 10 V/rms 1
150 KHz - 80 MHz
Emissions to EN 50081-2
RF interference EN 55011 Enclosure class A
Power mains class A
AVAILABLE INDICATION DISPLAYS AND PRESETS FOR EACH MODEL
LGS LGD LGB LGM
RATE
PEAK
VALLEY
COUNT
(1 Preset)
RATE
PEAK
VALLEY
COUNT
(2 Presets)
RATE
PEAK
VALLEY
COUNT
(6 Presets)
RATE
PEAK
VALLEY
PROCESS
BATCH
TOTAL
(4 Presets)
MODEL CNT + DIR QUAD ADD/ADD ADD/SUB
X1 X2 X1 X2 X4 X1* X1*
LGS (Single Preset) 23 11 9 7 5.5 23 12
LGD (Dual Preset) 20 10 8.5 7 5 20 10
LGB (Batch) 17 8774 17 9
LGM (Six Preset) 15 7773 15 8

B
1891-717-767-6511
SPECIFICATIONS (Cont’d)
Note:
1. When the unit is DC powered from terminal TBA pin 5 (common) and
terminal TBA pin 3 (DC OUT/IN) a power line filter was installed, RLC
#LFIL0000 or equivalent, so as not to impair the function of the unit.
Refer to the EMC Installation Guidelines section of the manual for additional
information.
13. ENVIRONMENTAL CONDITIONS:
Operating Temperature: 0 to 50°C
Storage Temperature: -40 to 70°C
Operating and Storage Humidity: 85% max. (non-condensing) from 0°C
to 50°C.
Vibration According to IEC 68-2-6: 5 to 150 Hz, in X, Y, Z direction for
1.5 hours, 2 g’s.
Shock According to IEC 68-2-27: Operational 20 g’s (10g relay), 11 msec
in 3 directions.
Altitude: Up to 2000 meters
14. CONSTRUCTION: High impact plastic case with clear viewing window.
The front panel meets NEMA 4X/IP65 requirements for indoor use when
installed properly. Installation Category II, Pollution Degree 2. Panel gasket
and mounting clips included.
15. WEIGHT: 1.5 lbs. (0.68 Kg)
PROGRAMMING
The Legend Series provides an easy to use, menu driven programming
interface. The English prompts, the front panel keypad, and the flashing display
aids the operator during programming. In the normal run mode, the main
display loop allows the user to scroll through the four programmable indication
displays, using the direction keys. From the main loop, presets and scale factors
can be accessed directly for changing parameters. All other parameters are
accessed through the programming loop. In the programming loop, parameters
can be viewed or changed and the operator can exit anywhere in the loop.
Shown to the side is part of the main display loop and part of the programming
loop of a Dual Preset Legend (LGD) unit. Also shown are four different views
of the indication displays.
PROGRAMMABLE FUNCTIONS
PRESET(S)
Ranges from -99999 to 999999
Counter Load ranges from -99999 to 999999
SCALE FACTORS (RATE & COUNT)
Range from 0.0001 to 5.9999
COUNT SCALE MULTIPLIER
Multiplies the contents of the 9-digit internal counter or the 11-digit internal
totalizer by a factor of 1, 0.1, 0.01 or 0.001 to view the desired number of
significant digits on the 6-digit Counter display or the 8-digit Totalizer display.
DECIMAL POINT
Separate decimal point location for Count and Rate displays.
0
0.0
0.00
0.000
0.0000
0.00000
RATE SCALE MULTIPLIERS
Multiplies the contents of the actual internal rate, pulses per second (PPS),
by a factor of 0.01, 0.1, 1, 10, 100, or 1000 to view the desired number of
significant digits on the 6-digit Rate display. The desired time units that the rate
is to be displayed, can also be programmed as per Second (x1), per Minute
(x60), or per Hour (x3600).
UPDATE TIME
The Rate Minimum/Maximum Update Times range from 0.1 to 99.9 seconds
which provides averaging capability for non-consistent pulse spacing.
COUNTING MODES
Count with Direction
Count with Direction (X2)
Quadrature
Quadrature (X2)
Quadrature (X4)
2-Input Anti-coincidence Add/Add
2-Input Anti-coincidence Add/Subtract
A separate Inhibit input, is available for all count modes.
RESET MODES
Manual Reset
Automatic Reset at Preset
Reset at Beginning Of Output 1
Reset at End Of Timed Output 1
Reset at Beginning Of Output 2
Reset at End Of Timed Output 2
Reset at Beginning Of Output 1 or Output 2
Reset at End Of Timed Output 1 or Output 2
MODEL LGB ONLY
Reset at Beginning Of Output 3
Reset at End Of Timed Output 3
Reset at Beginning Of Output 4
Reset at End Of Timed Output 4
Reset at Beginning Of Output 3 or Output 4
Reset at End Of Timed Output 3 or Output 4

B
190 www.redlion.net
PROGRAMMABLE FUNCTIONS (Cont’d)
RESET ACTION
Reset to Zero: Output activates when the count equals the preset value. Count
display value returns to zero when reset.
Reset to Preset: Output activates when the count equals zero. Count display
value returns to preset value when reset.
Reset to Counter Load: Output activates when count equals the preset value.
Count display value returns to counter load value when reset.
USER INPUTS
There are three external user inputs and two front panel Function keys that
are programmable. When activated each User Input can be programmed to
perform one of the following functions:
Maintained Reset or Momentary Reset:
Can reset Rate, Peak, Valley, Process*, Batch*, Total*, or Count* display values
and/or any output associated with that display.
*Models with the available display.
Reset Output(s):
Places the output(s) in their inactive state. (Momentary action)
Set Output(s):
Places the output(s) in their active state. (Momentary action)
View Display 1-4:
Will cause the selected indication display (1, 2, 3, or 4) to be displayed and
held from anywhere in the main display loop.
Change Display:
Will cause the indication display to toggle to the next indication display.
Counter Load:
Loads the counter load value into the count display.
Print Request:
Transmits the values specified in the Program Print Options module over the
serial port.
Skip Preset 1, Skip Preset 3 (LGB Only):
Keeps the output from activating and automatic reset from occurring, if
programmed, when the count value equals the preset value.
Program Disable:
Operates in conjunction with the program disable DIP switch, to provide a
variety of program disable modes.
OUTPUT(S)
Output Assignment:
The LGS can have its Output assigned to the Count or the Rate.
The LGD can have Outputs 1 & 2 assigned to the Count or the Rate.
The LGB has Outputs 1 & 2 assigned to the Process. Outputs 3 and 4 can be
assigned to the Batch, Total, or Rate.
The LGM can have Outputs 5 and 6 assigned to either Count or Rate and
Outputs 1-4 are assigned to the Counter.
Output Activation Mode:
Latched
Boundary
Timed - 0.01 to 99.99 seconds
Output Reset Mode:
Outputs 1 & 2 Only:
End Output 1 @ Output 2 Start
End Output 1 @ Timed Output 2 End
End Output 2 @ Output 1 Start
End Output 2 @ Timed Output 1 End
Output(s) Power Up or Power Down State:
The Output’s state can be set to be Off (Inactive) @ power up.
OR
The Output’s state can be saved @ power down and restored at power-up.
Note: Power down state for Latched Mode Only.
Reset Output when Count is Reset:
This feature can be enabled or disabled.
Phase:
Each Output can have its logic state set for Positive (ON) Phase or
Negative (OFF) Phase.
INDICATION DISPLAYS
There are four configurable indication displays are programmed individually.
Each line of each indication display can be programmed to show one of the
following Mnemonics; COUNT*, PROCESS*, BATCH*, TOTAL*, PEAK,
VALLEY, OR RATE, and a Numeric value, Output status, Preset value, or the
Counter Load value. A single or dual character Mnemonic is displayed to the left
of the appropriate Numeric value if the other line is not programmed to display
the full mnemonic. Also the indication displays can be set to scroll automatically
at a 2.5 or 5 second rate, if desired.
* Models with the available display.
COMMUNICATION PORT
Baud Rate - 1200 to 9600
Parity - Odd, Even, or No parity
Unit Address - 00 to 99
Transmit Delay - 0.002 or 0.100 seconds
PRINT OPTIONS
The programmable print options specify which values will be transmitted
when a print request is issued. The available options are; Rate, Peak, Valley,
Count*, Totalizer*, Process*, Batch*, Scale Factors, Preset(s), and Counter
Load values. *Models with the available display.
The unit can be programmed to transmit or NOT transmit mnemonics (unit
address & value identifiers).
OPERATOR ACCESS TO FRONT PANEL
There are several program disable modes that can be used to limit the
operator from programming the parameter values via the front panel keypad.
The Program Disable DIP switch can be used alone or in conjunction with a
User Input, programmed for the program disable function, to provide the desired
level of security.

B
1911-717-767-6511
LGB APPLICATION
An order requires that sheets of material be cut in two different lengths. The operator would like to change the settings for the second
length to be cut with no down time. A Legend series LGB (Four Preset Batch Counter/Rate Indicator) is used to satisfy the requirement.
A Lenght Sensor (LSQ) with a 100 pulse per revolution (PPR) quadrature output is coupled with an LSAHC hinge clamp assemby and
a one foot circumference wheel. The LEGEND series LGB is set to the Quadrature X1 mode. With a one foot wheel, the information
becomes 100pulses/foot and allows the material to be cut to the nearest 1/100 of a foot. The counter display is programmed for two
decimal places to provide a readout in 1/100 of a foot increments.
Preset value P1(Process
count) is programmed for the
first length to be cut for the order
and Preset value P2 (Process
count) for the second length.
The outputs are used to
control power to the cutting
knife and the counter is
programmed to reset when
Preset 1 or Preset 2 is reached.
Preset value P3(Batch count)
is programmed to activate User
Input 1 (skip P1)when the total
number of pieces is reached for
the first order. Preset value P4
(Batch count) is programmed to
stop the process after the second
order is complete. The totalizer
will keep track of the total
amount of feet used.

B
192 www.redlion.net
LGM APPLICATION
A process performs five different procedures to a piece of raw stock at five different locations. The Legend series LGM with six presets
and six solid state outputs is used for this application.
The raw stock comes in ten foot sections and requires five various operations to be performed at 9.00", 23.00", 72.00", 83.00", & 111.00".
A rotary pulse generator (RPGB) with a 600 pulse per revolution (PPR) quadrature output is coupled to a 1 foot circumference wheel. A
quadrature sensor is specified because the stock must be reversed after stations #1 and #4. This allows the Legend to keep track of true position.
The Legend is set to the quadrature X2 mode
which increases the pulses to 1200 PPR. This gives a
measurement resolution of 1/100 of an inch. The five
Presets are programmed with the proper values and
the solid state outputs control pilot relays that control
the actuators. As the material passes each station, a
signal is sent to the proper equipment and the process
is performed. Also, the outputs are programmed so
that if a power outage occurs they will save the state
that they were in at power down.
The sixth output is assigned to rate so that if the
rate drops below a predetermined value the output
will activate a warning indicator.
ORDERING INFORMATION
MODEL NO. DESCRIPTION OPTION
w/RELAY BOARD
LGS
Single Preset Legend w/Yel-Grn Backlighting No LGS00001
Single Preset Legend w/Yel-Grn Backlighting Yes LGS00000
Single Preset Legend w/Red Backlighting No LGS00101
Single Preset Legend w/Red Backlighting Yes LGS00100
LGD
No LGD00001
Dual Preset Legend w/Yel-Grn Backlighting Yes LGD00000
No LGD00101
Dual Preset Legend w/Red Backlighting Yes LGD00100
LGB Four Preset Batch Legend w/Yel-Grn Backlighting Ye s LGB00000
Four Preset Batch Legend w/Red Backlighting Yes LGB00100
LGM Multi Preset (6) Legend w/Yel-Grn Backlighting N/A LGM00001
Multi Preset (6) Legend w/Red Backlighting N/A LGM00101
_Legend Programming Software, 3.5", 1.44 M disk N/A SFLGP
_Single Relay Board N/A RLYLG001
_Dual Relay Board N/A RLYLG002
Dual Preset Legend w/Yel-Grn Backlighting
Dual Preset Legend w/Red Backlighting
PART NUMBERS
115/230 VAC
& +12 VDC

B
1931-717-767-6511
DESCRIPTION
The Legend Plus Series consists of two models that are multi-input count and
rate indicators. The LGPB features process, batch, and total counting, as well as
a time interval rate indicator. The four available presets can be assigned to the
process counter or the rate indicator. Outputs three and four can also be
assigned to the batch or total indicator. The Legend Plus foot-inch counter
provides Process and Total count read-outs in feet and inches. A decimal point
is used to separate the foot and inch units. All Process and Total presets are also
displayed in feet and inches. The LGPM features six presets, which can be
assigned to either the rate or count display.
The Legend Plus has advanced features which allow the units to be more
closely coupled to the application. The units feature a 2 line by 8 character
alpha-numeric display, allowing the value mnemonics and programming menus
to be easily read. The units are available in single or dual color display models.
The four scroll-through indication displays can be programmed to show various
parameters and automatically scroll, if desired. On dual color models, each
indication display can be programmed for either color. The mnemonics
corresponding to the main display values (RATE, PROCESS, BATCH,
TOTAL) can be individually programmed and modified as desired. For
example, the RATE mnemonic can be reprogrammed to display the word
SPEED, so that when the rate mnemonic is to be displayed, the mnemonic
SPEED is displayed instead.
Two custom display lines are available which enable the user to specify the
number of digits of a value to be displayed on the line, along with any alpha-
numeric prefix or suffix. This capability allows displays such as: ‘1000 RPM’,
‘99999 Ft’, ‘PRC 9999’, etc.
The Legend Plus also features messaging capabilities that can inform the
user of output actions or other events that occur in a system. Up to ten messages
can be programmed. Messages can be requested by an output status change,
user input(s), or through serial communications. The messages can be
programmed to blink, scroll, time out, and to alternately flash between message
and indication display.
On dual color models, the message can be programmed to be displayed in
either color. This capability is very useful in drawing the operator’s attention to
particular messages.
LEGEND PLUS SERIES MODEL LGPB - Four Preset Batch/Counter/Rate Indicator
MODEL LGPM - Six Preset Counter/Rate Indicator
MODEL LGPBF - Four Preset Foot-Inch Length Counter
DIMENSIONS In inches (mm)
Note: Recommended minimum clearance (behind the panel) for
mounting clip installation is 3.0" (76.2)H x 4.0" (101.6)W. PANEL CUT-OUT
O2X8 TRANSMISSIVE LCD, NEGATIVE IMAGE, WITH L.E.D.
BACKLIGHTING
OPROGRAMMABLE DISPLAY INTENSITY
OOPTIONAL DUAL COLOR DISPLAY (Red and Green)
OFOUR USER PROGRAMMABLE INDICATION DISPLAYS WITH
CUSTOMIZABLE MNEMONICS AND DISPLAY LINES
OPROGRAMMABLE MESSAGE CAPABILITIES
OENGLISH PROGRAMMING MENUS
ORS485 OR RS232 SERIAL COMMUNICATIONS
OOPTIONAL PROGRAMMING SOFTWARE FOR PROGRAMMING
MULTIPLE UNITS
OABILITY TO LOCKOUT OPERATOR ACCESS TO PROGRAMMING
PARAMETERS
OPROGRAMMABLE CONTROL INPUTS
OCOUNT INPUTS ARE SWITCH SELECTABLE FOR VARIOUS
SENSOR OUTPUTS
OBI-DIRECTIONAL COUNTING, UP/DOWN CONTROL
OQUADRATURE SENSING (Up to 4 times resolution)
OCOUNT INHIBIT TERMINAL AVAILABLE FOR ALL COUNT MODES
OACCEPTS COUNT RATES UP TO 15 KHz
OALL OUTPUT(S) ASSIGNABLE TO COUNT OR RATE
OON & OFF DELAY FOR RATE OUTPUTS
OSOLID STATE CURRENT SINKING OUTPUT(S)
ORELAY OUTPUTS (LGPB only; Field Replaceable)
OSEPARATE INPUT SCALING FOR RATE, COUNT, & TOTAL
O115/230 VAC SWITCH SELECTABLE
ONEMA 4X/IP65 SEALED FRONT PANEL BEZEL
UL Recognized Component,
File # E137808

B
194 www.redlion.net
DESCRIPTION (Cont’d)
The program disable DIP switch, the code value, and an external user input
selected for Program Disable can be utilized to provide multi-level protection
against unwanted changes to data values and unit configuration.
The Legend Plus features enhanced serial communications. The serial port
can be configured for connection to RS485 or RS232 devices. It can be used for
data retrieval and for programming various data values.
Optional Legend Plus Programming Software for IBM®compatible PCs is
available to program all the Legend configuration parameters, such as
messages, count modes, etc. The software allows unit configurations to be
created, uploaded, downloaded and saved to a file for rapid programming of the
Legend unit.
The six programmable User Inputs can be configured to provide a variety of
functions. Four user inputs are located on the upper rear terminal block and the
other two inputs are front panel function keys. The User Inputs can be
configured to provide functions such as:
Count Inhibit Reset
Message Request Message Cancellation
Output Activation Output Deactivation
Program Disable View/Freeze Display
Print Request Skip Presets(outputs)
The units offer a choice of seven programmable counting modes for use in
applications requiring Bi-directional, Anti-coincidence, and Quadrature
counting. The count inhibit function can be utilized with all of these input
response modes by programming User Input 4 for the Inhibit Count function.
The input circuitry is switch selectable to accept signals from a variety of
sources. In the Anti-coincidence mode both inputs are monitored
simultaneously, so that no counts are missed, and the final count can be chosen
as the sum or difference of the two inputs.
Rate, Process and Total displays have separate scaling and decimal point
placement, for readouts in different units. The Counter Load feature enables the
operator to modify the count value. This is useful when flawed material has
been counted and it is necessary to adjust the count value accordingly.
The rate operates in the time interval method (1/tau) to calculate the rate
value. This method insures high resolution at all input rates. Averaging can be
accomplished by programming the Minimum and Maximum Update Time for
the desired response. Extensive scaling capabilities allow practically any
reading at very slow input rates.
The construction of the Legend Plus unit is a lightweight, high impact plastic
case with a clear viewing window. The sealed front panel with silicone rubber
keypad meets NEMA 4X/IP65 specifications for wash-down and/or dusty
environments, when properly installed. Plug-in style terminal blocks simplify
installation and wiring change-outs.
SAFETY SUMMARY
All safety related regulations, local codes and instructions that appear in the
manual or on equipment must be observed to ensure personal safety and to
prevent damage to either the instrument or equipment connected to it. If
equipment is used in a manner not specified by the manufacturer, the protection
provided by the equipment may be impaired.
Do not use this unit to directly command motors, valves, or other actuators
not equipped with safeguards. To do so, can be potentially harmful to persons
or equipment in the event of a fault to the unit.
MODEL - LGPB
The process counter is used to monitor the count within the batch. Presets 1
through 4 can be assigned to the process counter or the rate indicator. Presets 3
and 4 can also be assigned to either the batch counter or totalizer.
Presets 1 and 2 can activate relay outputs 1 and 2 respectively. Presets 3 and
4 can activate the NPN open collector outputs O3-SNK and O4-SNK
respectively.
MODEL - LGPM
The Multi Preset unit has 6 presets which can control NPN open collector
outputs 01-SNK to 06-SNK respectively. Presets 1 through 6 can be assigned to
either the rate or count display.
SPECIFICATIONS
1. DISPLAY: 2x8, 0.3" (7 mm) high characters, negative image transmissive
LCD, with Single (green or red) or Dual Color (green and red) LED
backlighting.
2. POWER:
AC Operation: 115/230 VAC ±10%, 50/60 Hz, 10 VA, switch selectable.
DC Operation: +12 VDC ±20% @ 250 mA max.
3. MEMORY: Non-volatile memory retains all programming information.
Count and Preset values are written to non-volatile memory when power is
interrupted. All other programming parameters are written to memory when
programming mode is exited. If power is removed while in the programming
menu’s the parameters are stored to previously saved settings.
Data Retention: 10 yr. min.
Message/Mnemonics Memory:
792 (LGPB) / 804 (LGPM) bytes available (with factory settings loaded).
4. SENSOR POWER: +12 VDC ±25% @ 100 mA.
5. INPUTS A and B: DIP Switch selectable to accept count pulses from a
variety of sources including switch contacts, outputs from CMOS or TTL
circuits, magnetic pickups and all standard RLC sensors.
LOGIC: Input trigger levels VIL = 1.5 VMAX; VIH = 3.75 VMIN.
Current sinking: Internal 7.8 KΩpull up to +12 VDC, IMAX = 1.9 mA.
Current sourcing: Internal 3.9 KΩpull-down, 7.3 mAMAX @ 28 VDC.
Debounce: Damping capacitor provided for switch contact bounce.
Limits count speed to 50 Hz and input pulse widths to 10 msec min.
MAGNETIC PICKUP:
Sensitivity: 200 mV peak.
Hysteresis: 100 mV.
Input impedance: 3.9 KΩ@ 60 Hz.
Maximum input voltage: ±50 Vp
Note: For magnetic pickup input, the sink/source DIP switch must be in the
SRC position.
6. RATE ACCURACY: ±0.01%
7. RATE MINIMUM INPUT FREQUENCY: 0.01Hz.
8. MAXIMUM COUNT RATE IN KHz:
Notes:
1. Maximum count rates given are for Process counter set for Auto reset with
the auto cycle preset set to an equivalent of 100 count pulses or greater.
With auto cycle presets less than 100 counts the maximum count rates may
be lower. The actual Preset value for 100 count pulses, with Count
SF=0.5000 and Count Scale Multiplier=X1, would be 50.
2. Maximum count rate given for X2 & X4 count modes are given for 50%
duty cycle signals and Quad signals with 90° phase shift.
*Inputs A & B count rates summed.
9. MAXIMUM COUNT CAPACITY:
Process or Count: 9 digits internal (non-scaled), 6 digits displayable (scaled)
Batch Count: 6 digits
Total Count: 11 digits internal (non-scaled), 8 digits displayable (scaled)
10. CONTROL INPUTS:
Programmable user inputs (4):
USR INP 1 to 3: Internal 10 KΩpull-up to +5 VDC, VIL = 1.5 VMAX; VIH
= 3.5 VMIN, response time = 30 msec typical, 100 msec max. (count rate
dependent).
USR INP 4/INH: Internal 10 KΩpull-up to +5 VDC, VIL = 1.5 VMAX,
VIH = 3.0 VMIN, response time = 30 msec typical, 100 msec max. (count
rate dependent).
INHIBIT Response time = 50 μsec max.
User Inputs Programmed for Binary Message Request: Debounce =
100 msec. (Binary message request inputs must be stable for 100 msec
before a message is requested).
11. SERIAL COMMUNICATIONS:
Type: Jumper selectable RS485 or RS232.
Can connect up to 32 units when using RS485 interface.
Baud Rate: Programmable from 1200 to 9600.
Maximum Addresses: Programmable from 00 to 99. (Actual number on a
line is limited by hardware specifications)
Transmit Delay: Programmable for 0.002 or 0.100 second.
Data Format: 10 Bit Frame; 1 start bit, 7 or 8 data bits, 1 or no parity bit,
and 1 stop bit. Parity is programmable for ODD (7 data bits), EVEN (7
data bits), or NO Parity (8 data bits).
12. OUTPUT(S):
Solid-State: Current sinking NPN open collector transistor.
VCE = 1.1 VSAT @ 100 mA max. VOH = 30 VDC max.
(Internal Zener Diode Protection).
LGPM
RATE
PEAK
VALLEY
PROCESS
BATCH
TOTAL
(4 Presets)
RATE
PEAK
VALLEY
COUNT
(6 Presets)
LGPB & LGPBF
STANDARD INDICATION DISPLAYS
& PRESETS FOR EACH MODEL
MODEL CNT + DIR QUAD ADD/SUBADD/ADD
X1 X2 X1 X2 X4 X1*X1*
LGPB (Batch) 15 7 7 5.5 314 7
LGPM (Six Preset) 13 6652.5 12 6
LGPBF (Foot-Inch) 15 7 7 5.5 315 7

B
1951-717-767-6511
12. OUTPUT(S): (Cont’d)
Relay(s): Mounted on field-replaceable P.C. board. Form C contacts rated at
5 amps @ 120 VAC/240 VAC or 28 VDC (resistive load), 1/8 H.P. @ 120
VAC (inductive load). The operate time is 5 msec nominal and the release
time is 3 msec nominal.
Programmable Timed Output(s): Programmable time ranges from 0.01 to
99.99 seconds, ±0.05% - 11 msec max.
Output Time Required To Request Message: 50 msec.
13. ENVIRONMENTAL CONDITIONS:
Operating Temperature: 0 to 50°C
Storage Temperature: -40 to 70°C
Operating and Storage Humidity: 85% max. (non-condensing) from 0°C to
50°C.
Vibration According to IEC 68-2-6: 5 to 150 Hz, in X, Y, Z direction for 1.5
hours, 2 g’s.
Shock According to IEC 68-2-27: Operational 20 g’s (10g relay), 11 msec
in 3 directions.
Altitude: Up to 2000 meters
14. CERTIFICATIONS AND COMPLIANCES:
UL Recognized Component, File # E137808, UL508, CSA22.2 No. 14
Recognized to U. S and Canadian requirements under the Component
Recognition Program of Underwriters Laboratories, Inc.
Type 4X Indoor Enclosure rating (Face only), UL50
IECEE CB Scheme Test Certificate #UL1581-176645/USA,
CB Scheme Test Report #97ME50052-081391
Issued by Underwriters Laboratories, Inc.
IEC 61010- 1, EN 61010- 1: Safety requirements for electrical equipment
for measurement, control, and laboratory use, Part 1.
IP65 Enclosure rating (Face only), IEC 529
ELECTROMAGNETIC COMPATIBILITY
Note:
1. When the unit is DC powered from terminal TBA pin 5 (common) and
terminal TBA pin 3 (DC OUT/ IN) a power line filter was installed, RLC
#LFIL0000 or equivalent, so as not to impair the function of the unit.
Refer to the EMC Installation Guidelines section of the manual for additional
information.
15. CONSTRUCTION: High impact plastic case with clear viewing window.
The front panel meets NEMA 4X/IP65 requirements for indoor use when
properly installed. Installation Category II, Pollution Degree 2. (Panel gasket,
mounting clips, nut fasteners and screws included with unit.)
16. WEIGHT: 1.5 lbs. (0.68 Kg)
PROGRAMMING
The Legend Plus Series provides an easy to use, menu driven programming
interface. The English prompts, the front panel keypad, and the flashing display
aid the operator during programming. In the normal operating mode, the main
display loop allows the user to scroll through the four programmable indication
displays using the direction keys. From the main loop, presets and scale factors
can be accessed directly. All other parameters are accessed through the
programming loop, which can be set to require an access code number to enter
the loop. In the programming loop, parameters can be viewed or changed and
the operator can exit anywhere in the loop. The drawing above shows the main
display loop and part of the programming loop of a Legend Plus unit. Also
shown above right are four different views of the indication displays.
PROGRAMMABLE FUNCTIONS
PRESET(S)
Ranges from -99999 to 999999
Counter Load ranges from -99999 to 999999
SCALE FACTORS (RATE, COUNT & TOTAL)
Ranges from 0.0001 to 5.9999. The internal count value is multiplied by the
count scale factor and the count scale multiplier to provide the process count
display value. The total count is scaled by the count scale factor and the count
scale multiplier, and is additionally scaled by the total scale factor. The number
of negative edges is multiplied by the rate scale factor, the rate scale multiplier,
and the rate conversion factor to calculate the rate value.
COUNT SCALE MULTIPLIER
Multiplies the contents of the 9-digit internal counter or the 11-digit internal
totalizer by a factor of 1, 0.1, 0.01 or 0.001 to view the desired number of
significant digits on the 6-digit Counter display or the 8-digit Totalizer display.
DECIMAL POINT
Separate decimal point location for Count, Rate, and Total displays.
0
0.0
0.00
0.000
0.0000
0.00000
RATE SCALE MULTIPLIERS
Multiplies the contents of the actual internal rate, pulses per second (PPS),
by a factor of 0.01, 0.1, 1, 10, 100, or 1000 to view the desired number of
significant digits on the 6-digit Rate display. The desired time units for the rate
can be programmed as per Second (x1), per Minute (x60), or per Hour (x3600).
Immunity to EN 50082-2
EN 61000-4-2Electrostatic discharge Level 2; 4 Kv contact
Level 3; 10 V/m
Level 3; 8 Kv air
Electromagnetic RF fields EN 61000-4-3
Level 4; 2 Kv I/O1
80 MHz - 1 GHz
EN 61000-4-4Fast transients (burst)
Level 3; 2 Kv power
Level 3; 10 V/rms 1
EN 61000-4-6RF conducted interference
150 KHz - 80 MHz
Level 4; 30 A/mPower frequency magnetic fields EN 61000-4-8
Emissions to EN 50081-2
Enclosure class AEN 55011RF interference
Power mains class A

B
196 www.redlion.net
PROGRAMMABLE FUNCTIONS (Cont’d)
UPDATE TIME
The Rate Minimum and Maximum Update Times range from 0.1 to 99.9
seconds. This provides averaging capability for non-consistent pulse spacing.
Note: The maximum update time must be larger than the minimum update time.
COUNTING MODES
Count with Direction
Count with Direction (X2)
Quadrature
Quadrature (X2)
Quadrature (X4)
2-Input Anti-coincidence Add/Subtract
2-Input Anti-coincidence Add/Add
A separate Inhibit input is available for all count modes.
RESET MODES
Manual Reset
Automatic Reset at Preset
Reset at Beginning Of Output 1
Reset at End Of Timed Output 1
Reset at Beginning Of Output 2
Reset at End Of Timed Output 2
Reset at Beginning Of Output 1 or Output 2
Reset at End Of Timed Output 1 or Output 2
MODEL LGPB ONLY
Reset at Beginning Of Output 3
Reset at End Of Timed Output 3
Reset at Beginning Of Output 4
Reset at End Of Timed Output 4
Reset at Beginning Of Output 3 or Output 4
Reset at End Of Timed Output 3 or Output 4
RESET ACTION
Reset to Zero: Count display value returns to zero when reset. Output activates,
if programmed, when the count equals the preset value.
Reset to Preset: Count display value returns to preset value when reset. Output
assigned to the specified preset activates, if programmed, when the count
equals zero.
Reset to Counter Load: Count display value returns to counter load value when
reset. Output activates, if programmed, when count equals the preset value.
USER INPUTS
There are four external user inputs and two front panel Function keys that are
programmable. When activated, each user input can be programmed to perform
one of the following functions:
Maintained Reset or Momentary Reset:
Can reset Rate, Peak, Valley, Process*, Batch*, Total*, or Count* display
values and/or any output associated with that display.
*On Models with these available display options.
Reset Output(s):
Places the output(s) in their inactive state. (Momentary action)
Set Output(s):
Places the output(s) in their active state. (Momentary action)
View Display 1-4:
Causes the selected indication display (1, 2, 3, or 4) to be displayed and held
from anywhere in the main display loop. The current display value is frozen
(not updated) while the display is held.
Change Display:
Causes the indication display to toggle to the next indication display.
Request Message:
Requests a specific programmed message to activate.
Clear Message:
Causes the displayed message to be canceled. (Maintained action)
Skip Preset:
Keeps the output from activating and automatic reset from occurring, if
programmed, when the count value equals the preset value.
Counter Load:
Places the counter load value into the count display and operates from that
value. (Maintained action)
Print Request:
Transmits the values specified in the Program Print Options module over the
serial port. (Maintained action)
Program Disable:
Can be used alone, or in conjunction with the program disable DIP switch, to
provide a variety of program security modes. (External User Input only)
Inhibit Count:
Prevents pulses from being counted on Inputs A and B. (User Input 4 only).
The rate input is not affected by the inhibit setting and continues to display the
rate of the signal at Input A.
OUTPUT(S)
Output Assignment:
The LGPB can have outputs 1 through 4 assigned to the process or the rate.
Outputs 3 and 4 can also be assigned to the batch or total.
The LGPM can have outputs 1 through 6 assigned to either count or rate.
Phase:
Each output can have its active logic state set for positive phase (normally
off) or negative phase (normally on).
Output Activation Mode:
Latched
Boundary
Timed - 0.01 to 99.99 seconds
Hi/Lo Acting:
This mode is used in conjunction with all Rate modes and the Boundary
count modes. A Lo acting output would perform the Output action when the
count/rate is lower than the preset. A Hi acting output would perform the
Output action when the count/rate is higher than or equal to the preset.
Rate Output On/Off Delay:
Used to prevent output chatter. Output condition must be satisfied for a
period of time longer than delay period for output state to change.
On Delay: Prevents activation of output(s) for the amount of time
programmed.
Off Delay: Prevents deactivation of output(s) for the amount of time
programmed.
On & Off Delay: This mode prevents output state change for specified delay
period when turning on or off.
Output Reset Mode:
Outputs 1 & 2 Only:
End Output 1 @ Output 2 Start
End Output 1 @ Timed Output 2 End
End Output 2 @ Output 1 Start
End Output 2 @ Timed Output 1 End
Output(s) Power Up or Power Down State:
The Output’s state can be set to be Off (Inactive) @ power up.
OR
The Output’s state can be saved @ power down and restored at power-up.
OR
The Output’s state can be set to be ON (Active) @ power up.
Note: Power down state for Latched Mode Only.
Reset Output when Count is Reset:
This feature can be enabled or disabled.
Request Message:
Each output can be programmed to request a specific message when the
output conditions are satisfied.
INDICATION DISPLAYS
Each of the four indication displays is programmed individually. Each line of
each indication display can be programmed to show a value mnemonic, a
numeric value, the output status, a preset value, the counter load value, or a
custom display line. The mnemonics are factory set to; RATE, PEAK, VALLEY,
COUNT*, PROCESS*, BATCH*, TOTAL*, and OVERFLOW. Each
mnemonic can be individually changed to a mnemonic tailored to a specific
application. The first character of the full mnemonic is displayed to the left of
the appropriate numeric value if the other line is not programmed to display the
full mnemonic. Each of the 4 indication displays can be programmed to be
green or red on dual color models.
* On Models with these available display options.
Scroll Speed:
None
2.5 Seconds
5.0 Seconds
Display Intensity:
The brightness of the display can be adjusted from 1 to 5, with 5 as the
brightest. There is a separate adjustment for each color.

B
1971-717-767-6511
PROGRAMMABLE FUNCTIONS (Cont’d)
INDICATION DISPLAYS (Cont’d)
Custom Display Line:
The Legend Plus has two Custom Display Lines which allow the user to
specify the number of digits to be displayed on the line, along with any alpha-
numeric prefix or suffix.
Program Mnemonic:
Allows the user to modify the mnemonics (RATE, PROCESS, BATCH, etc.)
to a mnemonic of your choice. For example, RATE can be changed to read
SPEED.
MESSAGES
There are ten messages that can be programmed in the Legend. The following
attributes can be set for each message.
Message Text:
Standard Characters - Lower/Upper case letters, numbers, punctuation
symbols
Extended Characters (Including most European characters)
Message Priority:
1 to 8 (1 = highest priority)
Message Type:
1 line block - message scrolls in block fashion on the top line of the display,
bottom line contains programmed indication display.
2 line block - message scrolls in block fashion on both lines of the display
1 line scroll - message scrolls right to left on the top line of the display,
bottom line contains programmed indication display
2 line scroll - Top line scrolls right to left, bottom line is blanked
Maintained/Momentary Request:
A Maintained Request setting enables messages to be restored or
redisplayed, when the display is available if the input/output action
requesting the message is still active.
A Momentary Message setting will allow only one request per message
requesting input/output action. Lower priority messages will be canceled by
higher priority messages.
Blinking Message:
Enables the message to blink when displayed. Only available with 1 or 2 line
block messages.
Multiplex:
Setting this parameter to yes will cause the unit to display the message for 2
seconds, then display the programmed display for 2 seconds. Only available
with 1 or 2 line block messages.
Message Cancellation:
The displayed message is canceled when:
A message of equal or higher priority is requested.
Message times out (Timed) and input/output is deactivated.
User input or output is deactivated (Til End).
User input programmed for clear message is activated.
Message Time:
Ranges from 1 to 599 Seconds.
Message Color: (Dual Color Option only)
Green or Red
COMMUNICATION PORT
Jumper selectable for RS-485 or RS-232
Baud Rate - 1200 to 9600
Parity - Odd (7 data bits), Even (7 data bits), or No parity (8 data bits)
Unit Address - 00 to 99
Transmit Delay - 0.002 or 0.100 seconds
PRINT OPTIONS
The programmable print options specify which values are transmitted when
a print request is issued. The available options are; Rate, Peak, Valley, Count*,
Process*, Batch*, Total*, Scale Factors, Preset(s), Counter Load values, and
Message 0. * On Models with these available display options.
The unit can be programmed to transmit or NOT to transmit mnemonics (unit
address & value identifiers). The mnemonic transmitted is the first three
characters of the programmed display mnemonic. For total, only the first
character is transmitted. A transmit and reset count capability allows the
selected count values to automatically reset after the value is printed
(transmitted).
OPERATOR ACCESS TO FRONT PANEL
There are several program disable modes that can be used to limit the
operator from programming the parameter values via the front panel keypad.
The Program Disable DIP switch can be used alone or in conjunction with a
User Input, programmed for the program disable function and a programmable
code value, to provide the desired level of security.
MODEL LGPB APPLICATION
A local canning plant wishes to improve the display and control capabilities
of its nine process lines. There is a requirement to add message interaction for
the operators during process operation. The following application facts and
requirements have been specified by the plant engineer.
1. The cans are sensed by a photo-electric device specially suited for can
manufacturing. The device produces one pulse per can.
2. The can count for the process of boxing the cans is the first requirement. The
can count is never changed, there are always 24 cans to each box. An output
is required at 20 cans to slow the line temporarily until the second output is
turned on. The second output changes the gate direction to begin the next
grouping of 24. The second output has a time delay output of 2 seconds. After
the time delay, both outputs are reset and ready for the next process cycle.
3. A count of the number of batches is required for each 8-hour shift. This count
is recorded and reset by the manufacturing computer.
4. A total count of cans produced per 24-hour period is required. This count is
also transmitted to the manufacturing computer, and reset as required via the
communication link.
5. A display of cans per minute is required with minimum and maximum speed
limits. Output 3 activates below 100 counts per minute and Output 4
activates above 500 counts per minute.
6. The four desired displays are process, batch, total, and rate. These are to be
scrolled via the front panel.
7. The customer also wants the following messages displayed when the listed
events occur:
Output 3 - Line #4 Slow
Output 4 - Overspd STOP! (Wants this display to stand out and have top
priority)
Proximity 1 - Check Label Glue
Proximity 2 - Check Top Supply
Proximity 3 - System Fault! Stop Line #4! (Wants this display to stand out
and have top priority)
8. Once the unit is set up, the only front panel access should be for a reset of
the process count and viewing of the displays.
The following page is a chart of the necessary programming for the Legend
Plus unit.

B
198 www.redlion.net
ORDERING INFORMATION
LEGEND PLUS PROGRAM SHEET
MESSAGE
MSG. #1 1
TEXT GATE CHANGE
PRIORITY 8
TYPE 2L BLOCK
BLINKING NO
MULTIPLEX NO
CANCEL TIL END
TIME SEC.
COLOR GREEN
MSG. #2 2
TEXT LINE #4
SLOW
PRIORITY 7
TYPE 2L BLOCK
BLINKING YES
MULTIPLEX YES
CANCEL TIL END
TIME SEC.
COLOR GREEN
MSG. #3 3
TEXT OVERSPD
STOP
PRIORITY 5
TYPE 2L BLOCK
BLINKING YES
MULTIPLEX YES
CANCEL TIL END
TIME SEC.
COLOR RED
DISPLAY
DISPLY 1
D1 LINE 1 CUSTOM 2
D1 LINE 2 OUTPUTS
D1 COLOR GREEN
DISPLY 3
D3 LINE 1 CUSTOM 1
D3 LINE 2 CUSTOM 2
D3 COLOR GREEN
SCRO. SPD NONE
DSP. LEVEL G 10
R10
CUST. DSP.
CUST.DSP.1 VAL-RATE
-CPM
CUST. DPS.2 VAL-PRC
-CANS
SCALING
COUNT SF 1.0000
RATE SF 1.0000
TOT SF 1.0000
CNT. SCM X1.0
CNT. D.P. 0
RATE SCM X1.0
RATE PER MINUTE
RATE D.P. 0
TOT D.P. 0
CHG. CNT YES
USER INPUTS
BIN. MSG.REQ. NONE
USER INP. 1 REQMSG#5
USER INP. 3 REQMSG#4
USER F1 NO MODE
OUTPUTS
OUTPUT 1
ASSIGNED TO PRC
PHASE +
TYPE LATCHED
ACT/TIME
OUTPUT END @OUT2END
OFF @ P. OFF@P.UP
RST/C EN
REQ MSG #
OUTPUT 3
ASSIGNED TO RATE
PHASE +
TYPE BOUNDARY
ACT/TIME LO ACT
OFF @ P. OFF@P.UP
RST/C EN
REQ MSG # 2
OPTIONS
ACCESS
P1 NO
P2 NO
P3 NO
P4 NO
CTLD. NO
SF’S NO
PRESET TRACKING
P1 TRACK NONE
P2 TRACK NONE
P3 TRACK NONE
P4 TRACK NONE
PRO. CODE 33
RATE
MIN. TIME 1.0
MAX. TIME 5.0
COUNTER
CNT. INPUT CT+DIRX1
PRC. RST. TO ZERO
P AUTO. RS OUT2
BAT. RST. TO ZERO
B AUTO. RS DISABLED
TOT. RST. TO ZERO
USER INP. 2 REQMSG#6
USER INP. 4 CLRMSG
USER F2 MNT.RST
PRC-YES
OUTPUT 2
ASSIGNED TO PRC
PHASE +
TYPE TIMED
ACT/TIME 2.00
OUTPUT END DISABLED
OFF @ P. OFF@P.UP
RST/C EN
REQ MSG #
OUTPUT 4
ASSIGNED TO RATE
PHASE +
TYPE BOUNDARY
ACT/TIME HI ACT
OFF @ P. OFF@P.UP
RST/C EN
REQ MSG # 3
PRESETS
P1 20
P2 24
P3 100
P4 500
CL 0
MSG. #4 4
TEXT SYSTEM
FAULTSTOP LINE #4
PRIORITY 5
TYPE 2L BLOCK
BLINKING YES
MULTIPLEX NO
CANCEL TIMED
TIME SEC. 1
COLOR RED
MSG. #5 5
TEXT CHECK LABEL
GLUE
PRIORITY 6
TYPE 1L SCROL
BLINKING
MULTIPLEX
CANCEL TIMED
TIME SEC. 1
COLOR GREEN
MSG. #6 6
TEXT CHECK TOP
SUPPLY
PRIORITY 6
TYPE 1L SCROL
BLINKING
MULTIPLEX
CANCEL TIMED
TIME SEC. 1
COLOR GREEN
DISPLY 2
D2 LINE 1 BAT-MNE
D2 LINE 2 BAT-VAL
D2 COLOR GREEN
DISPLY 4
D4 LINE 1 TOT-MNE
D4 LINE 2 TOT-VAL
D4 COLOR GREEN
MNEMONIC
RATE SPEED
PEAK P
VALLEY V
PROC/CNT CANS
BATCH CASES
TOTAL TOT.CANS
OVERFLOW OVERFLOW
MODEL NO. DESCRIPTION
PART NUMBER
115/230 VAC
& +12VDC
LGPB
Four Preset Batch Legend Plus w/Grn Backlighting LGPB0000
Four Preset Batch Legend Plus w/Red Backlighting LGPB0100
Four Preset Batch Legend Plus w/Dual Color Backlighting LGPB0200
LGPM
Multi-Preset (6) Legend Plus w/Grn Backlighting LGPM0001
Multi-Preset (6) Legend Plus w/Red Backlighting LGPM0101
Multi-Preset (6) Legend Plus w/Dual Color Backlighting LGPM0201
LGPBF Four Preset Foot-Inch Counter w/Red Backlighting LGPBF100
SFLGP Legend Plus Programming Software, 3 1/2", 1.44 M Disk SFLGP
Dual Relay Board (Model LGPBs only) RLYLG002

1991-717-767-6511
RATE
METERS
C
The Trusted Source for
Innovative Control
Solutions

Page 205 Page 210 Page 220 Page 209
C
200 www.redlion.net
QUICK Specs
INDICATION
5 Digit, .6" (15mm) Reflective,
Green and
Red Backlight LCD
6 Digit, .56" (14mm) LED 6 Digit, .56" (14mm) LED
Decimal and Chronometer Modes
6 Digit, .46" (12mm)
Reflective, Green and
Red Backlight LCD
Display
Rate Indicator 1/8 DIN Rate Indicator 1/8 DIN Process Time Indicator Counter/Rate Meter with
Output Option Card Capability
Selectable Time Base
Range 4 msec to 32 sec. Adjustable Time Interval Adjustable Time Interval Adjustable Time Interval
10,000 Counts/Sec. 25,000 Counts/Sec. 25,000 Counts/Sec. 20,000 Counts/Sec.
No Yes Yes Yes
No
Yes, with Micro Line Power
Supply
9 to 17.5 VDC @ 100 mA 9 to 17.5 VDC @ 100 mA
No
Yes, with Micro Line Power
Supply
No No No Single Form C Relay
Dual Sinking
No No No RS485
3 Volt Lithium Battery,
Backlighting
9 - 28 VDC @ 35 mA
115/230 VAC
10 to 16 VDC
115/230 VAC
10 to 16 VDC 9 to 28 VDC
39 mm (H) x 75mm (W) 50 mm (H) x 97mm (W) 50 mm (H) x 97mm (W) 39 mm (H) x 75mm (W)
Max. Input
Frequency
Decimal Points
Sensor Power
Setpoint
Capability
Power Source
Dimensions
(Height)x (Width)
Communications
Measurement
Format
Description
DT8 PAXLR PAXLPT CUB5
CONTROL
Rate Meters
Page Number

Page 217 Page 218 Page 219 *
C
2011-717-767-6511
CONTROL
QUICK Specs
6 Digit, .56" (14mm)
Red LED
5 Digit, .56" (14mm) Standard
Green or Sunlight Readable
Red LED,
Adjustable Intensity
6 Digit, .56" (14mm) Standard
Green or Sunlight Readable
Red LED,
Adjustable Intensity
6 Digit, .56" (14mm) LED
Display
1/8 DIN Counter/Rate Meter
with Setpoint Capability
1/8 DIN Rate Meter
with Setpoint Card Capability
1/8 DIN Counter/Rate Meter with
Output Option Card Capability
Dual Rate Meter with
Math Functions
Uni-Directional
Up/Down
Inhibit
Add/Subtract
Add/Add
Quadrature
Batch
Adjustable Time Interval Adjustable Time Interval
Adjustable Time Interval
Ratio (A/B),
Difference (A-B),
Draw [(A-B)/B] or Dual Rate
20,000 Counts/Sec.
Program Dependent 34,000 Counts/Sec. 34,000 Counts/Sec. 10,000 Counts/Sec.
Yes Yes Yes Yes
24 VDC @ 100 mA, over 50 V
24 VDC @ 50 mA, under 50 V 12 VDC @ 100 mA 12 VDC @ 100 mA 12 VDC @ 100 mA
Dual Form C Relays
Dual Form C
Quad Form A
Quad Sinking
Quad Sourcing
Dual Form C
Quad Form A
Quad Sinking
Quad Sourcing
Single or Dual Form C
Current Sinking
No No
RS232
RS485
Modbus
DeviceNet
Profibus
Ethernet w/ICM8
20 mA Current Loop
50 to 250 VAC
21.6 to 250 VDC
85 to 250 VAC
11 to 36 VDC
24 VAC
85 to 250 VAC
11 to 36 VDC
24 VAC
115/230 VAC
11 to 14 VDC
50 mm (H) x 97mm (W) 50 mm (H) x 97mm (W) 50 mm (H) x 97mm (W) 69 mm (H) x 133 mm (W)
Max. Input
Frequency
Decimal Points
Sensor Power
Setpoint
Capability
Power Source
Dimensions
(Height)x (Width)
Communications
Measurement
Format
Description
PAXLCR PAXR PAXI GEM52
INDICATION
Rate Meters
Page Number
*See website for product information.

Page 227 Page 231
C
202 www.redlion.net
QUICK Specs
INDICATION
2 x 8 Digit, .3" (7mm)
Red Backlight LCD 5 Digit, .4" (10mm) LCD
Display
Motor Drive Controller Hand Held Rate Indicator
Master & Follower Modes
Loop Response:
10 msec (Master)
20 msec (Follower)
Touch Type [HHT]
Revs./Min
Feet/Min
Meters/Min
Photo Type [HHTP]
Revs/Min
20,000 Counts/Sec.
1999 RPM, 1999.9 M/Min
6560 Ft/Min [HHT]
100,000 RPM [HHTP]
Yes Yes
12 VDC @ 100 mA No
3 Current Sinking
0 to 15 VDC No
No No
115/230 VAC 4 x 1.5 V AA size
75 mm (H) x 75 mm (W) 170 mm (H) x 72 mm (W)
Max. Input
Frequency
Decimal Points
Sensor Power
Setpoint
Capability
Power Source
Dimensions
(Height)x (Width)
Communications
Measurement
Format
Description
MDC HHT
Page Number
CONTROL
Rate Meters

C
2031-717-767-6511
CUBID/CUBVD
LPPI
APLIT/APLHV
APLCL/APLPV
APLSG
IMP
IMD
IMH
WHAT YOU’RE USING NOW CURRENT PRODUCT
DT8DT5
QDisplay: 5 Digit, .6" (15 mm)
Reflective and Backlight LCD
QPower Source: Internal Battery
QMeasurement Format: Time Base
QDisplay: 4 Digit, .35" (9 mm)
Reflective LCD
QPower Source: 2 “N” Alkaline
Batteries
QMeasurement Format: Fixed One
Second
DT8DT6
QDisplay: 5 Digit, .6" (15 mm)
Reflective and Backlight LCD
QPower Source: Internal Battery
QMeasurement Format: Time Base
QDisplay: 4 Digit, .35" (9 mm)
Reflective LCD
QPower Source: 2 “N” Alkaline Batteries
or 5 to 24 VDC
QMeasurement Format: Time Base
MODEL NUMBER FEATURES MODEL NUMBER FEATURES
DT8DT7
QDisplay: 5 Digit, .6" (15 mm)
Reflective and Backlight LCD
QPower Source: Internal Battery
QMeasurement Format: Time Base
QDisplay: 5 Digit, .6" (15 mm)
Reflective and Backlight LCD
QPower Source: Internal Battery
QMeasurement Format: Time Base
DT8DT9
QDisplay: 5 Digit, .6" (15 mm)
Reflective and Backlight LCD
QPower Source: Internal Battery
QMeasurement Format: Time Base
QDisplay: 5 Digit, .46" (12 mm)
Reflective and Backlight LCD
QPower Source: Internal Battery
QMeasurement Format: Time Base
REPLACEMENT Guide
Note: Refer to the current product literature, as some differences may exist.
PAXIIMI
QDisplay: 6 Digit, .56" (14 mm)
Red LED
QPower Source: 115/230 VAC,
11 to 36 VDC
QCount Speed: 34 KHz Max.
QRequires Appropriate Option Card
QDisplay: 6 Digit, .56" (14 mm)
Red LED
QPower Source: 115/230 VAC
QCount Speed: 50 KHz Max.
PAXLPTAPLPT
QDisplay: 6 Digit, .56" (14 mm) Red LED
QPower Source: 115/230 VAC,
10 to 16 VDC
QMeasurement Format: Programmable
Scaling and Update
Panel Cut-Out Dimension Differences
QDisplay: 4 or 5 Digit, .56" (14 mm)
Red LED
QPower Source: 115/230 VAC,
11 to 14 VDC
QMeasurement Format: Process Time
PAXLRAPLR & APLRI
QDisplay: 6 Digit, .56" (14 mm) Red LED
QPower Source: 115/230 VAC,
10 to 16 VDC
QMeasurement Format: Programmable
Scaling and Update
Panel Cut-Out Dimension Differences
QDisplay: 6 Digit, .56" (14 mm)
Red LED
QConstruction: Metal Front Bezel
QPower Source: 115/230 VAC,
11 to 14 VDC
QMeasurement Format: Time Base
PAXLRDT3D
QDisplay: 6 Digit, .56" (14 mm) Red LED
QPower Source: 115/230 VAC,
10 to 16 VDC
QMeasurement Format: Programmable
Scaling and Update
QUse PMKA1 Panel
Panel Cut-Out Dimension Differences
QDisplay: 4 Digit, .43" (11 mm)
Red LED
QPower Source: 115/230 VAC, 12 VDC
QMeasurement Format: Time Base
PAXLRDT3A
QDisplay: 6 Digit, .56" (14 mm) Red LED
QPower Source: 115/230 VAC,
10 to 16 VDC
QMeasurement Format: Programmable
Scaling and Update
QUse PMKA1 Panel
Panel Cut-Out Dimension Differences
QDisplay: 4 Digit, .43" (11 mm)
Red LED
QPower Source: 115/230 VAC
QMeasurement Format: Fixed One
Second

C
204 www.redlion.net
This page intentionally left blank.

C
2051-717-767-6511
zLCD, POSITIVE REFLECTIVE OR NEGATIVE TRANSMISSIVE
WITH YELLOW/GREEN OR RED BACKLIGHTING
z0.6 INCH (15.2 mm) HIGH DIGITS
zADJUSTABLE TIMEBASE FROM 4 MSEC TO 32 SEC
zINTERNAL LITHIUM BATTERY PROVIDES OVER 7 YEARS OF
CONTINUOUS OPERATION
zNEMA 4X/IP65 SEALED FRONT PANEL BEZEL
zACCEPTS MAGNETIC OR LOGIC TYPE SIGNAL INPUTS
zWIRE CONNECTIONS MADE VIA SCREW CLAMP
TYPE TERMINALS
DESCRIPTION
The Ditak 8 is a self-powered rate indicator which features selectable
Timebase Increments by setting the appropriate DIP switches on the rear of the
unit. The internal 3.0 VDC lithium battery will operate continuously for at least
7 years. It has a 5-digit LCD display with 0.6 inch (15.2 mm) high digits. The
displays are available in positive image reflective (black digits, reflective
background) or negative image transmissive (illuminated digits, dark
background) with red or yellow/green backlighting. Backlight version units
require power from an external 9 to 28 VDC supply.
The unit is constructed of a lightweight, high impact plastic case with a clear
viewing window. The sealed front panel meets NEMA 4X/IP65 specifications
for wash-down and/or dusty environments, when properly installed.
The optional Micro Line/Sensor Power Supply (MLPS1000) is designed to
attach to the rear of an installed Ditak 8. The optional supply can be powered
from 85 to 250 VAC, and can provide power for the backlighting of a unit and
most sensors.
SAFETY SUMMARY
All safety related regulations, local codes and instructions that appear in the
manual or on equipment must be observed to ensure personal safety and to
prevent damage to either the instrument or equipment connected to it. If
equipment is used in a manner not specified by the manufacturer, the protection
provided by the equipment may be impaired.
SPECIFICATIONS
1. DISPLAY: 5-Digit LCD, 0.6" (15.2 mm) high digits.
2. POWER SOURCE: Internal 3.0 V lithium battery provides over 7 years of
continuous service (battery life is dependent upon usage).
3. BACKLIGHT POWER REQUIREMENTS: 9 to 28 VDC @ 35 mA.
Above 26 VDC, derate operating temperature to 50°C. Must use the MLPS1
or a Class 2 or SELV rated power supply.
4. SIGNAL INPUT: 0 to 10 KHz from a magnetic or bi-polar output (with a
50% duty cycle). Min. input sensitivity is 0.9 V. Max. input = 28 VDC.
5. TIMEBASE: Adjustable in 1/256 sec (3.906 msec) increments via DIP
switches located at the rear of the unit. Timebase ranges from 3.906 msec to
31.998 sec; 0.01% ±1 digit accuracy.
6. ENVIRONMENTAL CONDITIONS:
Operating Temperature: 0 to 60°C (Above 50°C derate backlight operating
voltage to 26 VDC max.)
Storage Temperature: -40 to 80°C
Operating and Storage Humidity: 85% max. (non-condensing) from 0°C to
60°C.
Altitude: Up to 2000 meters
7. CONSTRUCTION: High impact plastic case with clear viewing window
(Panel gasket and mounting clip included). Installation Category I, Pollution
Degree 2.
DITAK 8 - ADJUSTABLE TIMEBASE 5-DIGIT RATE INDICATOR
DIMENSIONS In inches (mm) Note: Recommended minimum clearance (behind the panel) for
mounting clip installation is 2.15" (54.6) H x 3.00" (76.2) W.
CAUTION: Risk of Danger.
Read complete instructions prior to
installation and operation of the unit.
MODEL NO. DESCRIPTION PART NUMBER
DT8
Adjustable Timebase Tachometer DT800000
DT800010
DT800020
MLPS Micro Line Sensor/Power Supply MLPS1000
Adjustable Timebase Tachometer with
Yellow/Green Backlighting
Adjustable Timebase Tachometer with
Red Backlighting
For more information on Pricing, Enclosures & Panel Mount Kits refer to the RLC
Catalog or contact your local RLC distributor.
ORDERING INFORMATION

C
206 www.redlion.net
SPECIFICATIONS (Cont’d)
8. CERTIFICATIONS AND COMPLIANCES:
SAFETY
IEC 1010-1, EN 61010-1: Safety requirements for electrical equipment
for measurement, control, and laboratory use, Part 1.
IP65 Enclosure rating (Face only), IEC 529
Type 4X Enclosure rating (Face only), UL50
ELECTROMAGNETIC COMPATIBILITY
Notes:
1. Criterion A: Normal operation within specified limits.
2. Criterion B: Temporary loss of performance from which the unit self-
recovers.
Refer to the EMC Installation Guidelines section of this bulletin for
additional information.
9. WEIGHT: 3.4 oz (96.4 g)
EMC INSTALLATION GUIDELINES
Although this unit is designed with a high degree of immunity to
ElectroMagnetic Interference (EMI), proper installation and wiring methods
must be followed to ensure compatibility in each application. The type of the
electrical noise, source or coupling method into the unit may be different for
various installations. In extremely high EMI environments, additional measures
may be needed. Cable length, routing and shield termination are very important
and can mean the difference between a successful or a troublesome installation.
Listed below are some EMC guidelines for successful installation in an
industrial environment.
1. Use shielded (screened) cables for all Signal and Control inputs. The shield
(screen) pigtail connection should be made as short as possible. The
connection point for the shield depends somewhat upon the application.
Listed below are the recommended methods of connecting the shield, in
order of their effectiveness.
a. Connect the shield only at the panel where the unit is mounted to earth
ground (protective earth).
b. Connect the shield to earth ground at both ends of the cable, usually when
the noise source frequency is above 1 MHz.
c. Connect the shield to common of the unit and leave the other end of the
shield unconnected and insulated from earth ground.
2. Never run Signal or Control cables in the same conduit or raceway with AC
power lines, conductors feeding motors, solenoids, SCR controls, and
heaters, etc. The cables should be run in metal conduit that is properly
grounded. This is especially useful in applications where cable runs are long
and portable two-way radios are used in close proximity or if the installation
is near a commercial radio transmitter.
3. Signal or Control cables within an enclosure should be routed as far away as
possible from contactors, control relays, transformers, and other noisy
components.
4. In extremely high EMI environments, the use of external EMI suppression
devices, such as ferrite suppression cores, is effective. Install them on Signal
and Control cables as close to the unit as possible. Loop the cable through the
core several times or use multiple cores on each cable for additional protection.
Install line filters on the power input cable to the unit to suppress power line
interference. Install them near the power entry point of the enclosure. The
following EMI suppression devices (or equivalent) are recommended:
WIRING CONNECTIONS
The electrical connections are made via rear screw-clamp terminals
located on the back of the unit. All conductors should meet voltage and
current ratings for each terminal. Also cabling should conform to
appropriate standards of good installation, local codes and regulations. It is
recommended that power supplied to the unit (AC or DC) be protected by a
fuse or circuit breaker. When wiring the unit, use the label to identify the
wire position with the proper function. Strip the wire, leaving
approximately 1/4" bare wire exposed (stranded wires should be tinned with
solder). Insert the wire into the screw-clamp terminal and tighten the screw
until the wire is clamped tightly. Each terminal can accept up to two #14
AWG wires.
The backlighting for a backlight version unit is powered between
Terminal 2 (V+) and Terminal 1 (GND).
Ferrite Suppression Cores for signal and control cables:
Fair-Rite # 0443167251 (RLC #FCOR0000)
TDK # ZCAT3035-1330A
Steward #28B2029-0A0
Line Filters for input power cables:
Schaffner # FN610-1/07 (RLC #LFIL0000)
Schaffner # FN670-1.8/07
Corcom #1VR3
Note: Reference manufacturer’s instructions when installing a line filter.
5. Long cable runs are more susceptible to EMI pickup than short cable runs.
Therefore, keep cable runs as short as possible.
Immunity:
Electrostatic discharge EN 61000-4-2 Criterion B
4 kV contact discharge
8 kV air discharge
Electromagnetic RF fields EN 61000-4-3 Criterion A
10 V/m
Fast transients (burst) EN 61000-4-4 Criterion B
2 kV power
2 kV signal
Surge EN 61000-4-5 Criterion A
1 kV signal
RF conducted interference EN 61000-4-6 Criterion A
3 V/rms
Voltage dip/interruptions EN 61000-4-11 Criterion A
0.5 cycle
Emissions:
Emissions EN 55011 Class B
Emissions and Immunity to EN 61326
1 kV L-L, 2 kV
L&N-E power
BLOCK DIAGRAM
Variable Frequency AC Inputs, Signal Source Powered
Variable Frequency AC Inputs, Signal Source Powered
Logic Pulse Inputs From Other Circuits & Sensors
Minimum VAC for operation is 0.9 V peak.

C
2071-717-767-6511
REAR PANEL DIP SWITCHES
When viewing the Ditak 8 from the rear, there are two banks of DIP switches
located along the top edge of the PC board. The bank of eight switches to the left
is labeled SWA and the bank of six switches to the right is labeled SWB. All of
the SWA switches and five of the SWB switches are used to select the desired
Timebase. The remaining switch of SWB is used to select Frequency Doubling.
WARNING: Lithium battery may explode if incinerated.
FREQUENCY DOUBLING
DIP switch SWB 6 is the “Frequency Doubling” switch. When it is in the
“ON” position, frequency doubling is disabled. When set to the “OFF” position,
it is enabled and twice the number of input pulses are registered in the unit. This
doubling of the input rate allows the Timebase Increment Total to be halved,
thus allowing a faster update time for a given display value.
TIMEBASE SELECTION
The Ditak 8 has a Timebase selection range from 3.906 msec to 31.998 sec.
SWA 1 is set to the “ON” position for the minimum Timebase setting. SWA 1
through SWB 5 are set to the “ON” position for the maximum Timebase setting.
A specific Timebase setting is achieved by adding the appropriate individual
Timebase increments.
TIMEBASE TIMEBASE
SWITCH INCREMENTS SWITCH INCREMENTS
SWA 1 1 SWB 1 256
SWA 2 2 SWB 2 512
SWA 3 4 SWB 3 1024
SWA 4 8 SWB 4 2048
SWA 5 16 SWB 5 4096
SWA 6 32 SWB 6 FREQ. DBL.
SWA 7 64
SWA 8 128
The Timebase increment total is computed according to the following formula:
TIMEBASE INCREMENT TOTAL (TBIT) =
WHERE:
DR = Desired Reading
RPM = Revolutions Per Minute
PPR = Pulses Per Revolution
FQ.DBL. = Frequency Doubling disable (times 1 switch on,
times 2 switch off)
Example: Find the appropriate Timebase DIP switch setting for desired
parameters.
Desired Readout (DR) = 2500
Revolutions Per Minute (RPM) = 1250
Pulses Per Revolution (PPR) = 50
FQ.DBL. = ON (times 1 switch on)
TIMEBASE INCREMENT TOTAL (TBIT) =
TBIT = 614.44
TBIT = 614 {round to the nearest whole number}
TBIT = 614
DIP SWB 2 - 512
102 - Needed
DIP SWA 7 - 64
38 - Needed
DIP SWA 6 - 32
6 - Needed
DIP SWA 3 - 4
2 - Needed
DIP SWA 2 - 2
0 - Needed
Note: If no timebase switches are turned on, the Ditak 8 will default to 3.906
msec timebase.
DIP switches SWA 2, 3, 6, 7, and SWB 2 are all set to the “ON” position for
a Timebase Increment Total of 614. If it is desired to know what the
approximate Timebase is in seconds, use the following formula:
TBIT x 0.003906 =Time in seconds
614 x 0.003906 =2.398 sec.
2500 x 15,361
1250 x 50 x 1
DR x 15,361
RPM x PPR x FQ.DBL.
TYPICAL APPLICATION
CONVEYOR BELT SPEED INDICATOR
It is desired to display the rate of a conveyor belt used to carry PC Boards through an infrared soldering chamber that is variable from 0 to 10 feet per minute.
The rate must be adjusted depending on the size of the boards being soldered. The display of the rate indicator must read in feet per minute. The shaft of the variable
speed motor contains a keyway. A speed of 100 RPM will produce a belt speed of 10 ft/min. A proximity sensor is used to monitor the speed of the shaft. The Ditak
8 can be used to display the belt speed in this application. The output signal of the sensor is connected to the Ditak 8 Terminal 3 (INP). The sensor common and
shield are connected to the Ditak 8 Terminal 1 (GND). The Timebase setting is to be determined by using the formula.
TIMEBASE INCREMENT TOTAL (TBIT) =
=
Desired Reading = 10
MAX RPM Of Shaft = 100
Pulses Per Revolution = 1
FQ.DBL. = ON (times 1 switch on)
TBIT = 1536.1
TBIT = 1536 {round to the nearest whole number}
TBIT = 1536
DIP SWB 3 - 1024
512 - Needed
DIP SWB 2 - 512
0 - Needed
With these DIP switch settings, the Timebase would be approximately 5.99 sec
(1536 x 0.003906 = 5.995). To reduce the display update time, the “Frequency
Doubling” switch can be enabled (set to the “OFF” position). Therefore, only half
the Timebase will be necessary (768 x 0.003906 = 2.99 sec.).
TBIT = 768
DIP SWB 2 - 512
256 - Needed
DIP SWB 1 - 256
0 - Needed
DIP SWB 6 - OFF - Frequency Doubling Enabled
10 x 15,361
100 x 1 x 1
DR x 15,361
RPM x PPR x FQ.DBL.

C
208 www.redlion.net
TROUBLESHOOTING
For further technical assistance, contact technical support at the appropriate company numbers listed.
INSTALLATION ENVIRONMENT
The unit should be installed in a location that does
not exceed the maximum operating temperature
and provides good air circulation. Placing the
unit near devices that generate excessive
heat should be avoided.
The bezel should be cleaned only
with a soft cloth and neutral soap
product. Do NOT use solvents.
Continuous exposure to direct
sunlight may accelerate the aging
process of the bezel.
INSTALLATION
The Ditak 8 meets NEMA 4X/IP65 requirements for
indoor use, when properly installed. The units are
intended to be mounted into an enclosed panel. A sponge
rubber gasket, mounting clip, two screws, and nut
fasteners are provided to install and seal the unit in the
panel cut-out.
The following procedure assures proper installation:
1. Cut panel opening to specified dimensions. Remove burrs
and clean panel opening.
2. Slide the panel gasket over the rear of the unit to the back of
the bezel.
3. Slide nut fastener into slot on mounting clip and then insert mounting
screw through nut on both sides of mounting clip. Tip of mounting screw
should NOT project through hole on clip.
4. Install Ditak unit through panel cut-out.
5. Slide mounting clip over rear of unit until clip is against back of panel. The
mounting clip and Ditak housing have a latching feature to hold the unit in
place until tightened.
Note: Hold the Ditak front bezel in place when sliding the mounting clip
into position.
6. Alternately tighten each mounting screw to ensure uniform gasket pressure.
Visually inspect the gasket for proper seal. The gasket should be
compressed approximately 75 to 80% of its original thickness.
7. If the gasket is not adequately compressed and the mounting screws cannot
be tightened any further, loosen mounting screws and insure that the clip is
latched as close as possible to the panel.
8. Repeat step #6 for tightening the mounting screws.

C
2091-717-767-6511
MODEL CUB5 - MINIATURE ELECTRONIC 8-DIGIT DUAL COUNTER AND
RATE INDICATOR
This is a brief overview of the CUB5. For complete specifications and programming information, see the
CUB5 Bulletin starting on page 102.
OLCD, REFLECTIVE OR GREEN/RED LED BACKLIGHTING
O0.46" (11.7 mm) HIGH DIGITS
OOPTIONAL RELAY OUTPUT MODULE
OOPTIONAL COMMS OUTPUT MODULES
OCOUNT SPEEDS UP TO 20 KHZ
OOPERATES FROM 9 TO 28 VDC POWER SOURCE
OPROGRAMMABLE SCALING FOR COUNT AND RATE
OBI-DIRECTIONAL COUNTING, UP/DOWN CONTROL
OQUADRATURE SENSING (UP TO 4 TIMES RESOLUTION)
OANTI-COINCIDENCE COUNTING (ADD/ADD & ADD/SUB)
ONEMA 4X/IP65 SEALED FRONT BEZEL
SPECIFICATIONS
COUNTER DISPLAYS:
Counter A: 8-digits, enabled in all count modes
Display Range: -9999999 to 99999999
Overflow Indication: Display flashes “Cnt OVEr”
Counter B: 7-digits, enabled in Dual Counter mode only
Display Designator: “b” to the left side of the display
Display Range: 0 to 9999999 (positive count only)
Overflow Indication: Display flashes “bCntOVEr”
Maximum Count Rates: 50% duty cycle
Without setpoint option card: 20 KHz (all count modes)
With setpoint option card: 20 KHz for any count mode except Quadrature
x4 (18 KHz) and Dual Counter (17 KHz)
RATE DISPLAY: 6-digits, may be enabled or disabled in any mode
Display Designator: “R” to the left side of the display
Display Range: 0 to 999999
Over Range Display: “R OLOLOL”
Maximum Frequency: 20 KHz
Minimum Frequency: 0.01 Hz
Accuracy: ±0.01%
COUNT/RATE SIGNAL INPUTS (INP A and INP B):
Input A: DIP switch selectable to accept pulses from a variety of sources.
See Section 2.0 Setting the DIP Switches for Input A specifications.
Input B: Logic signals only
Trigger levels: VIL = 1.0 V max; VIH = 2.4 V min; VMAX = 28 VDC
Current sinking: Internal 10KΩpull-up resistor to +9 to 28 VDC
Filter (LO Freq.): Damping capacitor provided for switch contact bounce.
Limits input frequency to 50 Hz and input pulse widths to 10 msec min.
C
C
US LISTED
US LISTED
UL
R
IND. CONT. EQ.
51EB

C
210 www.redlion.net
zRATE INDICATION
z6-DIGIT, 0.56" (14.2 mm) HIGH LED DISPLAYS
zINPUT RATES UP TO 25 KHZ
zACCEPTS A WIDE VARIETY OF SENSORS
zPROGRAMMABLE SCALING
zPROGRAMMABLE UPDATE TIME
zPROGRAMMABLE DECIMAL POINTS
zNEMA 4X/IP65 SEALED FRONT BEZEL
GENERAL DESCRIPTION
The PAX®Lite Rate Meter, Model PAXLR, provides the versatility and
flexibility needed to accommodate virtually any rate measuring application. The
meter has the ability to scale for direct readout in terms of the units being
measured. Whether a machine produces bottles, cloth, wire, or beverage mix,
operation is enhanced when the rate readout is expressed directly in bottles/min.,
feet/min., gallons/min., or whatever units are needed in plant applications.
The PAXLR can accommodate magnetic pickups, logic sensors, and NPN
open collector sensors. The pulses are received and scaled, so the desired
display can be achieved. The meter is programmed through both the front panel
buttons and DIP switches. Once the programming is complete, the front panel
buttons can be disabled by a DIP switch setting.
The meter has been specifically designed for harsh industrial environments.
With NEMA 4X/IP65 sealed bezel and extensive testing to meet CE
requirements, the meter provides a tough, yet reliable application solution.
SAFETY SUMMARY
All safety related regulations, local codes and instructions that appear in the
literature or on equipment must be observed to ensure personal safety and to
prevent damage to either the instrument or equipment connected to it. If
equipment is used in a manner not specified by the manufacturer, the protection
provided by the equipment may be impaired.
MODEL PAXLR - PAX®LITE RATE METER
CAUTION: Risk of Danger.
Read complete instructions prior to
installation and operation of the unit.
CAUTION: Risk of electric shock.
DIMENSIONS In inches (mm) Note: Recommended minimum clearance (behind the panel) for mounting clip installation is
2.1" (53.4) H x 5" (127) W.
C
C
US LISTED
US LISTED
UL
R
IND. CONT. EQ.
51EB

C
2111-717-767-6511
Ordering Information . . . . . . . . . . . . . . . . . . . 2
General Meter Specifications. . . . . . . . . . . . . 3
Installing the Meter . . . . . . . . . . . . . . . . . . . . 3
Setting the Switches . . . . . . . . . . . . . . . . . . . 4
Wiring the Meter . . . . . . . . . . . . . . . . . . . . . . 4
Reviewing the Front Buttons and Display . . . 6
Scaling the Meter . . . . . . . . . . . . . . . . . . . . . 6
Programming the Meter . . . . . . . . . . . . . . . . 7
ORDERING INFORMATION
PAXL 0
0
R0
R0 - 6 Digit Rate Meter
Meter Part Numbers
TABLE OFCONTENTS

C
212 www.redlion.net
1. DISPLAY: 6-digit, 0.56" (14.2 mm), 7-segment LED.
Decimal points are programmed by front panel keys.
2. POWER:
AC Power: 115/230 VAC, switch selectable. Allowable power line variation
±10%, 50/60 Hz, 6 VA. @ 100 mA max.
Isolation: 2300 Vrms for 1 min. to input and DC Out/In.
DC Power: 10 to 16 VDC @ 0.1 A max.
3. SENSOR POWER: 9 to 17.5 VDC @ 100 mA max.
4. KEYPAD: 3 programming keys, the T(Down Arrow) key can also function
as the front panel reset button.
5. INPUT: (DIP switch selectable)
Accepts pulses from a variety of sources including NPN-OC, PNP-OC, TTL
Outputs, Magnetic Pickups and all standard Red Lion®sensors.
Logic: Input trigger levels VIL = 1.5 V max.; VIH = 3.75 V min.
Current Sinking: Internal 7.8 KΩpull-up to +12 VDC, IMAX = 1.9 mA
Current Sourcing: Internal 3.9 KΩpull-down, 8 mA max. @ 30 VDC max.
MAGNETIC PICK-UP:
Sensitivity: 200 mV peak
Hysteresis: 100 mV
Input impedance: 3.9KΩ@ 60 Hz
Maximum input voltage: ±40 V peak, 30 Vrms
6. INPUT FREQUENCY RANGE:
Max Frequency: 25 KHz
Min Frequency: 0.01 Hz
Accuracy: ±0.01%
7. MEMORY: Nonvolatile E2PROM retains all programmable parameters and
display values.
8. ENVIRONMENTAL CONDITIONS:
Operating Temperature: 0° to 60°C
Storage Temperature: -40° to 60°C
Operating and Storage Humidity: 0 to 85% max. relative humidity (non-
condensing)
Vibration According to IEC 68-2-6: Operational 5 to 150 Hz, in X, Y, Z
direction for 1.5 hours, 2g’s.
Shock According to IEC 68-2-27: Operational 30 g (10g relay), 11 msec in
3 directions.
Altitude: Up to 2000 meters
9. CERTIFICATIONS AND COMPLIANCES:
SAFETY
UL Recognized Component, File # E179259, UL61010A-1, CSA C22.2
No. 61010-1
Recognized to U.S. and Canadian requirements under the Component
Recognition Program of Underwriters Laboratories, Inc.
UL Listed, File # E137808, UL508, CSA C22.2 No. 14-M95
LISTED by Und. Lab. Inc. to U.S. and Canadian safety standards
Type 4X Enclosure rating (Face only), UL50
IECEE CB Scheme Test Certificate # US/8843A/UL
CB Scheme Test Report # 04ME11209-20041018
Issued by Underwriters Laboratories, Inc.
IEC 61010-1, EN 61010-1: Safety requirements for electrical
equipment for measurement, control, and laboratory use, Part 1.
IP65 Enclosure rating (Face only), IEC 529
IP20 Enclosure rating (Rear of unit), IEC 529
ELECTROMAGNETIC COMPATIBILITY
Emissions and Immunity to EN 61326: Electrical Equipment for
Measurement, Control and Laboratory use.
Notes:
1. Criterion A: Normal operation within specified limits.
2. EMI filter placed on the DC power supply, when DC powered: Corcom
#1VB3 or Schaffner #FN610-1/07 (RLC #LFIL0000).
10. CONNECTIONS: High compression cage-clamp terminal block
Wire Strip Length: 0.3" (7.5 mm)
Wire Gage Capacity: 30-14 AWG copper wire.
Torque: 4.5 inch-lbs (0.51 N-m) max.
11. CONSTRUCTION: This unit is rated for NEMA 4X/IP65 outdoor use.
IP20 Touch safe. Installation Category II, Pollution Degree 2. One piece
bezel/case. Flame resistant. Synthetic rubber keypad. Panel gasket and
mounting clip included.
12. WEIGHT: 12 oz (340 g)
GENERAL METER SPECIFICATIONS
1.0 INSTALLING THE METER
Installation
The PAX meets NEMA 4X/IP65 requirements when properly installed. The
unit is intended to be mounted into an enclosed panel. Prepare the panel cutout
to the dimensions shown. Remove the panel latch from the unit. Slide the panel
gasket over the rear of the unit to the
back of the bezel. The unit should
be installed fully assembled.
Insert the unit into the panel
cutout.
While holding the unit in place, push the panel latch over the rear of the unit
so that the tabs of the panel latch engage in the slots on the case. The panel latch
should be engaged in the farthest forward slot possible. To achieve a proper seal,
tighten the latch screws evenly until the unit is snug in the panel (Torque to
approximately 7 in-lbs [79N-cm]). Do not over-tighten the screws.
Installation Environment
The unit should be installed in a location that does not exceed the maximum
operating temperature and provides good air circulation. Placing the unit near
devices that generate excessive heat should be avoided.
The bezel should be cleaned only with a soft cloth and neutral soap product.
Do NOT use solvents. Continuous exposure to direct sunlight may accelerate the
aging process of the bezel.
Do not use tools of any kind (screwdrivers, pens, pencils, etc.) to operate the
keypad of the unit.
PANEL CUT-OUT
Class BEN 55011Emissions
Emissions:
0.5 cycle
Criterion AEN 61000-4-11Voltage dip/interruptions
30 A/m
Criterion AEN 61000-4-8Power frequency magnetic fields
3 V/rms
Criterion AEN 61000-4-6RF conducted interference
1 kV signal
1 kV L-L,
EN 61000-4-5Surge
2 kV signal
2 kV power
EN 61000-4-4Fast transients (burst)
2 kV L&N-E power
10 V/m
Criterion AEN 61000-4-3Electromagnetic RF fields
8 kV air discharge
4 kV contact discharge
Criterion AEN 61000-4-2Electrostatic discharge
Immunity to Industrial Locations:

C
2131-717-767-6511
The meter has switches that must be checked and/or changed prior to
applying power. To access the power switch, remove the meter base from the
case by firmly squeezing and pulling back on the side rear finger tabs. This
should lower the latch below the case slot (which is located just in front of the
finger tabs). It is recommended to release the latch on one side, then start the
other side latch.
Power Selection Switch
Caution: Insure the AC power selection switch is set for the
proper voltage before powering-up the meter. The meter is shipped
from the factory in the 230 VAC position.
Set-Up DIP Switches
A DIP switch is located at the rear of the meter,
and is fully accessible when the unit is in the case.
It is used for the selection of the input parameters
and program disable.
SWITCH 1
SNK.: Adds internal 7.8 KΩpull-up resistor to + 12 VDC, IMAX = 1.9 mA.
SWITCH 2
SRC.: Adds internal 3.9 KΩpull-down resistor, 8 mA max. @ 30 VDC max.
SWITCH 3
HI Frequency: Removes damping capacitor and allows max. frequency.
LO Frequency: Limits input frequency to 50 Hz and input pulse widths
to 10 msec.
SWITCH 4
LOGIC: Input trigger levels VIL = 1.5 V max.; VIH = 3.75 V max.
MAG: 200 mV peak input (must have SRC on).
SWITCH 5
Enable Programming: Enables programming through the front panel buttons.
Disables Programming: Disables the front panel buttons from any
programming changes.
SWITCH 6
Not Active for the Rate Meter
2.0 SETTING THE SWITCHES
3.0 WIRING THE METER
WIRING OVERVIEW
Electrical connections are made via screw-clamp terminals located on the
back of the meter. All conductors should conform to the meter’s voltage and
current ratings. All cabling should conform to appropriate standards of good
installation, local codes and regulations. It is recommended that the power
supplied to the meter (DC or AC) be protected by a fuse or circuit breaker.
When wiring the meter, compare the numbers embossed on the back of the
meter case against those shown in wiring drawings for proper wire position. Strip
the wire, leaving approximately 0.3" (7.5 mm) bare lead exposed (stranded wires
should be tinned with solder.) Insert the lead under the correct screw-clamp
terminal and tighten until the wire is secure. (Pull wire to verify tightness.)
EMC INSTALLATION GUIDELINES
Although this meter is designed with a high degree of immunity to Electro-
Magnetic Interference (EMI), proper installation and wiring methods must be
followed to ensure compatibility in each application. The type of the electrical
noise, source or coupling method into the meter may be different for various
installations. The meter becomes more immune to EMI with fewer I/O
connections. Cable length, routing, and shield termination are very important
and can mean the difference between a successful or troublesome installation.
Listed below are some EMC guidelines for successful installation in an
industrial environment.
1. The meter should be mounted in a metal enclosure, which is properly
connected to protective earth.
2. Use shielded (screened) cables for all Signal and Control inputs. The shield
(screen) pigtail connection should be made as short as possible. The
connection point for the shield depends somewhat upon the application.
Listed below are the recommended methods of connecting the shield, in order
of their effectiveness.
a. Connect the shield only at the panel where the unit is mounted to earth
ground (protective earth).
b. Connect the shield to earth ground at both ends of the cable, usually when
the noise source frequency is above 1 MHz.
c. Connect the shield to common of the meter and leave the other end of the
shield unconnected and insulated from earth ground.
3. Never run Signal or Control cables in the same conduit or raceway with AC
power lines, conductors feeding motors, solenoids, SCR controls, and
heaters, etc. The cables should be ran in metal conduit that is properly
grounded. This is especially useful in applications where cable runs are long
and portable two-way radios are used in close proximity or if the installation
is near a commercial radio transmitter.
4. Signal or Control cables within an enclosure should be routed as far as possible
from contactors, control relays, transformers, and other noisy components.
5. In extremely high EMI environments, the use of external EMI suppression
devices, such as ferrite suppression cores, is effective. Install them on Signal
and Control cables as close to the unit as possible. Loop the cable through the
core several times or use multiple cores on each cable for additional protection.
Install line filters on the power input cable to the unit to suppress power line
interference. Install them near the power entry point of the enclosure. The
following EMI suppression devices (or equivalent) are recommended:
Ferrite Suppression Cores for signal and control cables:
Fair-Rite # 0443167251 (RLC# FCOR0000)
TDK # ZCAT3035-1330A
Steward # 28B2029-0A0
Line Filters for input power cables:
Schaffner # FN610-1/07 (RLC# LFIL0000)
Schaffner # FN670-1.8/07
Corcom # 1 VR3
Note: Reference manufacturer’s instructions when installing a line filter.
6. Long cable runs are more susceptible to EMI pickup than short cable runs.
Therefore, keep cable runs as short as possible.
7. Switching of inductive loads produces high EMI. Use of snubbers across
inductive loads suppresses EMI.
Snubber: RLC# SNUB0000.
REAR TERMINALS
FRONT DISPLAY
115
INPUT SET-UP
DIP SWITCHES
230
POWER
SELECTION
SWITCH
6
5
4
3
21
ON
DIS PGM
Not Active
MAG
LO Freq.
SRC.
SNK.
EN PGM
Not Active
LOGIC
HI Freq.
Not Active
Not Active
Factory Setting

C
214 www.redlion.net
3.2 INPUT WIRING
Current Sourcing Output Interfacing With TTL
Two Wire Proximity, Current Source
Current Sinking Output
AC Inputs From Tach Generators, Etc.
Magnetic Pickup
Emitter Follower; Current Source
*Switch position is application dependent.
3.1 POWER WIRING
AC Power
Terminal 1: VAC
Terminal 2: VAC
DC Power
Terminal 3: +VDC
Terminal 4: COMM

C
2151-717-767-6511
4.0 REVIEWING THE FRONT BUTTONS AND DISPLAY
5.0 SCALING THE METER
RATE SCALING
To scale the Rate, enter a Scaling Display value with a corresponding Scaling
Input value. These values are internally plotted to a Display value of 0 and Input
value of 0 Hz. A linear relationship is formed between these points to yield a
rate display value that corresponds to the incoming input signal rate. The
location of the scaling point should be near the process end limit for the best
possible accuracy. The PAXLR is capable of showing a rate display value for
any linear process.
SCALING CALCULATION
If a display value versus input signal (in pulses per second) is known, then
those values can be entered into Scaling Display () and Scaling Input
(). No further calculations are needed.
If only the number of pulses per ‘single’ unit (i.e. # of pulses per foot) is
known, then it can be entered as the Scaling Input value and the Scaling Display
value will be entered as the following:
NOTES:
1. If # of pulses per unit is less than 10, then multiply both Input and Display
values by 10.
2. If # of pulses per unit is less than 1, then multiply both Input and Display
values by 100.
3. If the Display value is raised or lowered, then Input value must be raised
or lowered by the same proportion (i.e. Display value for per hour is
entered by a third less (1200) then Input value is a third less of # of pulses
per unit). The same is true if the Input value is raised or lowered, then
Display value must be raised or lowered by the same proportion.
4. Both values must be greater than 0.0.
EXAMPLE:
1. With 15.1 pulses per foot, show feet per minute in tenths.
Scaling Display = 60.0 Scaling Input = 15.1
2. With 0.25 pulses per gallon, show whole gallons per hour. (To have greater
accuracy, multiply both Input and Display values by 10.)
Scaling Display = 36000 Scaling Input = 2.5
RATE DISPLAY OVERFLOW
The rate of the input signal along with the programmed scaling values can
cause the calculated rate display to exceed the meter’s 6-digit capacity. If this
occurs, the display will show “” to indicate an overflow condition.
INPUT FREQUENCY CALCULATION
The meter determines the input frequency by summing the number of falling
edges received during a sample period of time. The sample period begins on the
first falling edge. At this falling edge, the meter starts accumulating time
towards Low Update and High Update values. Also, the meter starts
accumulating the number of falling edges. When the time reaches the Low
Update Time value, the meter looks for one more falling edge to end the sample
period. If a falling edge occurs (before the High Update Time value is reached),
the Rate display will update to the new value and the next sample period will
start on the same edge. If the High Update Time value is reached (without
receiving a falling edge after reaching Low Update Time), then the sample
period will end but the Rate display will be forced to zero. The High Update
Time value must be greater than the Low Update Time value. Both values must
be greater than 0.0. The input frequency calculated during the sample period, is
then shown as a Rate value determined by either scaling method.
RATE PER DISPLAY ()INPUT ()
Second 1 # of pulses per unit
Minute 60 # of pulses per unit
Hour 3600 # of pulses per unit
KEY DISPLAY MODE OPERATION PROGRAMMING MODE OPERATION
PAR Access Programming Mode Store selected parameter and index to next parameter
SNo Function Increment selected digit of parameter value
TNo Function Select digit position in parameter value

C
216 www.redlion.net
The Rate Indicator has five programmable parameters which are entered in
the sequence shown above, using the front panel push buttons.
Before programming, refer to the section on Scaling the Meter to determine
the Rate Scaling Display Value and Rate Scaling Input Value to use for the
specific application.
Note: Programming mode can be locked out with the Program Disable DIP
switch. With the switch in the Disabled (up) position the meter will not enter
programming mode. Refer to the section on DIP switch setup.
PROGRAMMING MODE ENTRY
Press the PAR key to enter Programming Mode. The meter briefly displays
followed by the first programming parameter described below.
PROGRAMMING PARAMETERS
In programming mode, the display alternates between the parameter and the
current selection or value for that parameter. The dual display with arrows is
used below to illustrate the alternating display. The selection choices or value
range for each parameter is shown to the right of the alternating display.
This parameter selects the decimal point position on the display. The
selection does not affect scaling calculations.
Press the arrow keys (Sor T) to sequence through the selection list until the
desired selection is shown. Press the PAR key to save the displayed selection
and advance to the next parameter.
ENTERING NUMERICAL VALUES
The parameters which follow are displayed as a multi-digit numerical values
with one selected digit flashing (initially the far left digit). Press the S(up
arrow) key to increment the value of the selected (flashing) digit. Holding the
Skey automatically scrolls the value of the selected digit.
Press the T(down arrow) key to select the next digit position to the right.
Use the Skey to increment the value of this digit to the desired number. Press
the Tkey again to select the next digit to be changed. Holding the Tkey
automatically scrolls through each digit position.
Repeat the “select and set” sequence until all digits are displaying the desired
numerical value. Press the PAR key to save the displayed value and advance to
the next parameter.
The Low Update Time is the minimum amount of time between display
updates. The factory setting of 1.0 allows a minimum of one second between
updates. Low values below 0.3 seconds will update the display correctly, but
may cause the display to appear unsteady.
For more details on display updating, refer to Input Frequency Calculation.
The High Update Time is the maximum amount of time before the display is
forced to zero. The High Update Time must be higher than the Low Update
Time and also higher than the desired slowest readable speed (one divided by
pulses per second). The factory setting of 2.0 will force the display to zero for
speeds below 0.5 Hz or one pulse every 2 seconds.
For more details on display updating, refer to Input Frequency Calculation.
Enter the desired Rate Display value to be shown for the corresponding Rate
Input value entered below. For more explanation, refer to Rate Scaling.
If a decimal point was selected in the Decimal Position ( ) parameter,
it will be displayed at the same position for this parameter value.
Enter the Rate Input value that corresponds to the Rate Display value entered
above. This value is always in pulses per second (Hz). For more explanation,
refer to Rate Scaling.
PROGRAMMING MODE EXIT
The meter exits Programming Mode when the PAR key is pressed to save the
Rate Scaling Input Value. The meter briefly displays upon exiting
Programming Mode. All programmed selections are now transferred to the non-
volatile memory and the meter returns to the Rate display.
(If power loss occurs during programming mode, verify parameter changes
and reprogram, if necessary, when power is restored.)
PROGRAMMING MODE TIME OUT
The Programming Mode has an automatic time out feature. If no keypad
activity is detected for approximately 60 seconds, the meter automatically exits
Programming Mode. The meter briefly displays and returns to the Rate
display. When automatic timeout occurs, any changes that were made to the
parameter currently being programmed, will not be saved.
FACTORY SETTINGS
The factory settings for the programming parameters are shown above in the
alternating display illustrations. The factory settings can be easily restored by
removing power from the meter, and then pressing and holding the PAR key
while power is reapplied. The meter displays until the PAR key is
released. The normal power-up sequence then resumes, with the factory settings
loaded and saved in non-volatile memory.
Note: The Program Disable DIP switch must be in the Enabled (down)
position to allow loading factory settings. See section on DIP switch setup.
ª
«
ª
«
to seconds
DECIMAL POSITION
LOW UPDATE TIME (DISPLAY UPDATE)
ª
«
to seconds
HIGH UPDATE TIME (DISPLAY ZERO)
ª
«
to
RATE SCALING DISPLAY VALUE
ª
«
to
RATE SCALING INPUT VALUE
6.0 PROGRAMMING THE METER
PROGRAMMING SEQUENCE

C
2171-717-767-6511
z6 DIGIT, 0.56" HIGH RED LED DISPLAY
zPROGRAMMABLE SCALING FOR COUNT AND RATE
zBI-DIRECTIONAL COUNTING, UP/DOWN CONTROL
zQUADRATURE SENSING (UP TO 4 TIMES RESOLUTION)
zBUILT-IN BATCH COUNTING CAPABILITY
zPROGRAMMABLE USER INPUT
zDUAL 5 AMP FORM C RELAYS
zUNIVERSALLY POWERED
zNEMA 4X/IP65 SEALED FRONT BEZEL
MODEL PAXLCR - 1/8 DIN PAX LITE DUAL COUNTER AND RATE METER
This is a brief overview of the PAXLCR. For complete specifications and programming information, see the
PAX Lite Dual Counter and Rate Meter Bulletin starting on page 125.
ANNUNCIATORS:
A - Counter A value
B - Counter B value (dual count or batch)
- Rate value is displayed with no designator
SP1 - Indicates setpoint 1 output status
SP2 - Indicates setpoint 2 output status
COUNTER DISPLAYS:
Counter A: 6-digits, enabled in all count modes
Display Designator: “A” to the left side of the display
Display Range: -99999 to 999999
Counter B: 6-digits, enabled in Dual Count mode or Batch Counter
Display Designator: “B” to the left side of the display
Display Range: 0 to 999999 (positive count only)
Overflow Indication: Display “0-0-” alternates with overflowed count value
Maximum Count Rates: 50% duty cycle, count mode dependent.
With setpoints disabled: 25 KHz, all modes except Quadrature x4 (23 KHz).
With setpoint(s) enabled: 20 KHz, all modes except Dual Counter (14 KHz),
Quadrature x2 (13 KHz) and Quadrature x4 (12 KHz).
RATE DISPLAY: 6-digits, may be enabled or disabled in any count mode
Display Range: 0 to 999999
Over Range Display: “0-0-”
Maximum Frequency: 25 KHz
Minimum Frequency: 0.01 Hz
Accuracy: ±0.01%
COUNT/RATE SIGNAL INPUTS (INPUT A and INPUT B):
See Section 2.0 Setting the DIP Switches for complete Input specifications.
DIP switch selectable inputs accept pulses from a variety of sources. Both
inputs allow selectable active low or active high logic, and selectable input
filtering for low frequency signals or switch contact debounce.
Input A: Logic level or magnetic pickup signals.
Trigger levels: VIL = 1.25 V max; VIH = 2.75 V min; VMAX = 28 VDC
Mag. pickup sensitivity: 200 mV peak, 100 mV hysteresis, 40 V peak max.
Input B: Logic level signals only
Trigger levels: VIL = 1.0 V max; VIH = 2.4 V min; VMAX = 28 VDC

C
218 www.redlion.net
MODEL PAXR - 1/8 DIN RATE METER
This is a brief overview of the PAXR. For complete specifications and programming information, see the
PAX Digital Input Panel Meters Bulletin starting on page 137.
PAXR SPECIFICATIONS
ANNUNCIATORS:
- Rate
- Maximum (High) Rate
- Minimum (Low) Rate
SP1 - setpoint 1 output state
SP2 - setpoint 2 output state
SP3 - setpoint 3 output state
SP4 - setpoint 4 output state
RATE DISPLAY:
Accuracy: ±0.01%
Minimum Frequency: 0.01 Hz
Maximum Frequency: 34 KHz
Maximum Display: 5 Digits: 99999
Adjustable Display (low) Update: 0.1 to 99.9 seconds
Over Range Display: “ ”
INPUT A:
DIP switch selectable to accept pulses from a variety of sources including
TTL outputs, magnetic pickups and all standard RLC sensors.
LOGIC: Input trigger levels VIL = 1.5 V max.; VIH = 3.75 V min.
Current sinking: Internal 7.8 KΩpull-up to +12 VDC, IMAX = 1.9 mA.
Current sourcing: Internal 3.9 KΩpull-down, 7.3 mA max. @ 28 VDC,
VMAX = 30 VDC.
MAGNETIC PICKUP:
Sensitivity: 200 mV peak
Hysteresis: 100 mV
Input impedance: 3.9 KΩ@ 60 Hz
Maximum input voltage: ±40 V peak, 30 Vrms
O
5-DIGIT 0.56" RED SUNLIGHT READABLE OR
STANDARD GREEN DISPLAY
O
RATE INDICATION
O
MINIMUM/MAXIMUM RATE DISPLAYS
O
FOUR SETPOINT ALARM OUTPUTS (W/Plug-in card)
OVARIABLE INTENSITY DISPLAY
C
C
US LISTED
US LISTED
UL
R
IND. CONT. EQ.
51EB

C
2191-717-767-6511
MODEL PAXI - 1/8 DIN DUAL COUNTER/RATE METER
ANNUNCIATORS:
A - Counter A
B - Counter B
C - Counter C
- Rate
- Maximum (High) Rate
- Minimum (Low) Rate
- Upper significant digit display of counter
SP1 - setpoint 1 output state
SP2 - setpoint 2 output state
SP3 - setpoint 3 output state
SP4 - setpoint 4 output state
RATE DISPLAY:
Accuracy: ±0.01%
Minimum Frequency: 0.01 Hz
Maximum Frequency: see Max Signal Frequencies Table.
Maximum Display: 5 Digits: 99999
Adjustable Display (low) Update: 0.1 to 99.9 seconds
Over Range Display: “ ”
COUNTER DISPLAYS:
Maximum display: 8 digits: ± 99999999 (greater than 6 digits display
Alternates between high order and low order.)
INPUTS A and B:
DIP switch selectable to accept pulses from a variety of sources
including switch contacts, TTL outputs, magnetic pickups and all
standard RLC sensors.
LOGIC: Input trigger levels VIL = 1.5 V max.; VIH = 3.75 V min.
Current sinking: Internal 7.8 KΩpull-up to +12 VDC, IMAX = 1.9 mA.
Current sourcing: Internal 3.9 KΩpull-down, 7.3 mA max. @ 28 VDC,
VMAX = 30 VDC.
Filter: Damping capacitor provided for switch contact bounce. Limits
input frequency to 50 Hz and input pulse widths to 10 msec. minimum.
MAGNETIC PICKUP:
Sensitivity: 200 mV peak
Hysteresis: 100 mV
Input impedance: 3.9 KΩ@ 60 Hz
Maximum input voltage: ±40 V peak, 30 Vrms
DUAL COUNT MODES:
When any dual count mode is used, then User Inputs 1 and/or 2 will
accept the second signal of each signal pair. The user inputs do not
have the Logic/Mag, HI/LO Freq, and Sink/Source input setup
switches. The user inputs are inherently a logic input with no low
frequency filtering. Any mechanical contacts used for these inputs in a
dual count mode must be debounced externally. The user input may
only be selected for sink/source by the User Jumper placement.
PRESCALER OUTPUT:
NPN Open Collector: ISNK = 100 mA max. @ VOL = 1 VDC max. VOH = 30
VDC max. With duty cycle of 25% min. and 50 % max.
PAXI SPECIFICATIONS
MAXIMUM SIGNAL FREQUENCIES TABLE
To determine the maximum frequency for the input(s), first answer the questions with a yes (Y) or no (N). Next determine the Count Mode
to be used for the counter(s). If dual counters are used with different Count Modes, then the lowest frequency applies to both counters.
OCOUNTER, DUAL COUNTER, RATE AND SLAVE DISPLAY
O6-DIGIT 0.56" RED SUNLIGHT READABLE OR STANDARD
GREEN DISPLAY
OVARIABLE INTENSITY DISPLAY
O10 POINT SCALING (FOR NON-LINEAR PROCESSES)
OFOUR SETPOINT ALARM OUTPUTS (W/OPTION CARD)
ORETRANSMITTED ANALOG OUTPUT (W/OPTION CARD)
OCOMMUNICATION AND BUS CAPABILITIES (W/OPTION CARD)
OBUS CAPABILITIES; DEVICENET, MODBUS, AND PROFIBUS-DP
OCRIMSON PROGRAMMING SOFTWARE
N/A21N/A34N/A21N/A34Rate Only
34346868Quadrature x4
3 *3.5 *3.5 *4 *5 *6 *6 *7 *687912161317Quadrature x2
3 *3.5 *3.5 *4 *5 *6 *6 *7 *1011101217201922Quadrature x1
4 *5 *4 *5 *7 *9 *7 *9 *787912161317Count x2
797.59111312131113151817212534Count x1
(Values are in KHz)(Values are in KHz)(Values are in KHz)(Values are in KHz)COUNT MODE
YNYNYNYNYNYNYNYNIs Counter C used?
YYNNYYNNYYNNYYNNIs Prescaler Output used?
YYYYNNNNYYYYNNNNAre any setpoints used?
Dual: Counter A & B or Rate not assigned to active single counterSingle: Counter A or B (with/without rate) or Rate onlyFUNCTION QUESTIONS
This is a brief overview of the PAXI. For complete specifications and programming information, see the
PAX Digital Input Panel Meters Bulletin starting on page 137.
C
C
US LISTED
US LISTED
UL
R
IND. CONT. EQ.
51EB

C
220 www.redlion.net
zPROCESS TIME INDICATION
z6-DIGIT, 0.56" (14.2 mm) HIGH LED DISPLAYS
zDISPLAY MODES 999999 OR 999-59
zINPUT RATES UP TO 25 KHZ
zACCEPTS A WIDE VARIETY OF SENSORS
zPROGRAMMABLE SCALING
zPROGRAMMABLE DECIMAL POINTS
zNEMA 4X/IP65 SEALED FRONT BEZEL
GENERAL DESCRIPTION
The PAX®Lite Process Time Meter, Model PAXLPT, displays a value
representing the time between a beginning and end point of a process, such as a
conveyor oven.
The PAXLPT’s display will update inversely in relation to the input signal
frequency. As input frequency increases (representing speed), the PAXLPT
time display will decrease indicating a reduction in the duration of process
time. For example, the bake time through an oven will decrease the faster the
conveyor runs.
The display can be programmed for two operating modes. Operating in the 6
digit mode, the PAXLPT can readout in any whole value, such as seconds,
minutes, or hours. This mode also provides capability for decimal points. The 5
digit mode functions as a chronometer, which has a maximum display value of
999-59. This formats the display to allow the meter to readout in hours and
minutes, minutes and seconds, etc.
The PAX®Lite Process Time Indicator also has a feature called “moving
window average”. This allows one time disturbances, or irregularly spaced
items to be averaged over eight inputs, thus keeping display fluctuations to a
minimum while still updating the display on every pulse. This feature can be
enabled or disabled by a rear DIP switch.
The PAXLPT can accept many different types of sensors including magnetic
pickups, logic sensors, and NPN open collector sensors, as well as switch
contact closure sensors.
The meter has been specifically designed for harsh industrial environments.
With a NEMA 4X/IP65 sealed bezel and extensive testing to meet CE
requirements, the meter provides a tough yet reliable application solution.
SAFETY SUMMARY
All safety related regulations, local codes and instructions that appear in the
literature or on equipment must be observed to ensure personal safety and to
prevent damage to either the instrument or equipment connected to it. If
equipment is used in a manner not specified by the manufacturer, the protection
provided by the equipment may be impaired.
MODEL PAXLPT - PAX®LITE PROCESS TIME METER
CAUTION: Risk of Danger.
Read complete instructions prior to
installation and operation of the unit.
CAUTION: Risk of electric shock.
DIMENSIONS In inches (mm) Note: Recommended minimum clearance (behind the panel) for mounting clip installation is
2.1" (53.4) H x 5" (127) W.
C
C
US LISTED
US LISTED
UL
R
IND. CONT. EQ.
51EB

C
2211-717-767-6511
Ordering Information . . . . . . . . . . . . . . . . . . . 2
General Meter Specifications. . . . . . . . . . . . . 3
Installing the Meter . . . . . . . . . . . . . . . . . . . . 3
Setting the Jumper and Switches . . . . . . . . . 4
Wiring the Meter . . . . . . . . . . . . . . . . . . . . . . 4
Reviewing the Front Buttons and Display . . . 6
Scaling the Meter . . . . . . . . . . . . . . . . . . . . . 6
Programming the Meter . . . . . . . . . . . . . . . . 7
TABLE OFCONTENTS
ORDERING INFORMATION
PAXL 0
0
PT
PT - 6 Digit Process Time Meter
Meter Part Numbers

C
222 www.redlion.net
1. DISPLAY: 6-digit, 0.56" (14.2 mm), 7-segment LED.
Decimal points are programmed by front panel keys (6 digit mode only)
2. POWER:
AC Power: 115/230 VAC, switch selectable. Allowable power line variation
±10%, 50/60 Hz, 6 VA.
Isolation: 2300 Vrms for 1 min. to input and DC Out/In.
DC Power: 10 to 16 VDC @ 0.1 A max.
3. SENSOR POWER: 9 to 17.5 VDC @ 100 mA max.
4. KEYPAD: 3 programming keys
5. INPUT: (DIP switch selectable)
Accepts pulses from a variety of sources including NPN-OC, PNP-OC, TTL
Outputs, Magnetic Pickups and all standard Red Lion®sensors.
Logic State: Active Low
Input trigger levels VIL = 1.5 V max.; VIH = 3.75 V min.
Current Sinking: Internal 7.8 KΩpull-up to +12 VDC, IMAX = 1.9 mA
Current Sourcing: Internal 3.9 KΩpull-down, 8 mA max. @ 30 VDC max.
MAGNETIC PICK-UP:
Sensitivity: 200 mV peak
Hysteresis: 100 mV
Input impedance: 3.9KΩ@ 60 Hz
Maximum input voltage: ±40 V peak, 30 Vrms
6. INPUT FREQUENCY RANGE:
Max Frequency: 25 KHz
Min Frequency: 0.05 Hz
Accuracy: ±0.02%
Note: When the input pulse rate is 3 Hz or lower, the unit will utilize, if
enabled, a technique known as a “moving window average.” (This
continually averages the last eight input pulses.)
7. MEMORY: Nonvolatile E2PROM retains all programmable parameters.
8. ENVIRONMENTAL CONDITIONS:
Operating Temperature: 0° to 60°C
Storage Temperature: -40° to 60°C
Operating and Storage Humidity: 0 to 85% max. relative humidity (non-
condensing)
Vibration According to IEC 68-2-6: Operational 5 to 150 Hz, in X, Y, Z
direction for 1.5 hours, 2g’s.
Shock According to IEC 68-2-27: Operational 25 g (10g relay), 11 msec in
3 directions.
Altitude: Up to 2000 meters
9. CERTIFICATIONS AND COMPLIANCES:
SAFETY
UL Recognized Component, File # E179259, UL61010A-1, CSA C22.2
No. 61010-1
Recognized to U.S. and Canadian requirements under the Component
Recognition Program of Underwriters Laboratories, Inc.
UL Listed, File # E137808, UL508, CSA C22.2 No. 14-M95
LISTED by Und. Lab. Inc. to U.S. and Canadian safety standards
Type 4X Enclosure rating (Face only), UL50
IECEE CB Scheme Test Certificate # US/8843A/UL
CB Scheme Test Report # 04ME11209-20041018
Issued by Underwriters Laboratories, Inc.
IEC 1010-1, EN 61010-1: Safety requirements for electrical equipment
for measurement, control, and laboratory use, Part 1.
IP65 Enclosure rating (Face only), IEC 529
IP20 Enclosure rating (Rear of unit), IEC 529
ELECTROMAGNETIC COMPATIBILITY
Emissions and Immunity to EN 61326: Electrical Equipment for
Measurement, Control and Laboratory use.
Notes:
1. Criterion A: Normal operation within specified limits.
2. EMI filter placed on the DC power supply, when DC powered: Corcom
#1VB3 or Schaffner #FN610-1/07 (RLC #LFIL0000).
10. CONNECTIONS: High compression cage-clamp terminal block
Wire Strip Length: 0.3" (7.5 mm)
Wire Gage Capacity: 30-14 AWG copper wire.
Torque: 4.5 inch-lbs (0.51 N-m) max.
11. CONSTRUCTION: This unit is rated for NEMA 4X/IP65 outdoor use.
IP20 Touch safe. Installation Category II, Pollution Degree 2. One piece
bezel/case. Flame resistant. Synthetic rubber keypad. Panel gasket and
mounting clip included.
12. WEIGHT: 12 oz (340 g)
GENERAL METER SPECIFICATIONS
1.0 INSTALLING THE METER
Installation
The PAX meets NEMA 4X/IP65 requirements when properly installed. The
unit is intended to be mounted into an enclosed panel. Prepare the panel cutout
to the dimensions shown. Remove the panel latch from the unit. Slide the panel
gasket over the rear of the unit to the back
of the bezel. The unit should be
installed fully assembled. Insert the
unit into the panel cutout.
While holding the unit in place, push the panel latch over the rear of the unit
so that the tabs of the panel latch engage in the slots on the case. The panel latch
should be engaged in the farthest forward slot possible. To achieve a proper seal,
tighten the latch screws evenly until the unit is snug in the panel (Torque to
approximately 7 in-lbs [79N-cm]). Do not over-tighten the screws.
Installation Environment
The unit should be installed in a location that does not exceed the maximum
operating temperature and provides good air circulation. Placing the unit near
devices that generate excessive heat should be avoided.
The bezel should be cleaned only with a soft cloth and neutral soap product.
Do NOT use solvents. Continuous exposure to direct sunlight may accelerate the
aging process of the bezel.
Do not use tools of any kind (screwdrivers, pens, pencils, etc.) to operate the
keypad of the unit.
PANEL CUT-OUT
Class BEN 55011Emissions
Emissions:
0.5 cycle
Criterion AEN 61000-4-11Voltage dip/interruptions
30 A/m
Criterion AEN 61000-4-8Power frequency magnetic fields
3 V/rms
Criterion AEN 61000-4-6RF conducted interference
1 kV signal
1 kV L-L,
EN 61000-4-5Surge
2 kV signal
2 kV power
EN 61000-4-4Fast transients (burst)
2 kV L&N-E power
10 V/m
Criterion AEN 61000-4-3Electromagnetic RF fields
8 kV air discharge
4 kV contact discharge
Criterion AEN 61000-4-2Electrostatic discharge
Immunity to Industrial Locations:

C
2231-717-767-6511
The meter has a jumper and switches, which must be checked and/or changed
prior to applying power. To access the power switch and the jumper, remove the
meter base from the case by firmly squeezing and pulling back on the side rear
finger tabs. This should lower the latch below the case slot (which is located just
in front of the finger tabs). It is recommended to release the latch on one side,
then start the other side latch.
Power Selection Switch
Caution: Insure the AC power selection switch is set for the
proper voltage before powering-up the meter. The meter is shipped
from the factory in the 230 VAC position.
Mode Selection Jumper
Inside the meter is also the Mode Selection Jumper, located near the display
board. This jumper will select operation in the 6 digit mode or 5 digit
(chronometer) mode. When the jumper is positioned toward the display board,
the unit will be in the 6 digit mode of operation. With the jumper positioned
away from the display board, the meter is in the 5 digit (chronometer) mode.
This unit ships from the factory in the 6 digit mode.
Set-Up DIP Switches
A DIP switch is located at the rear of the meter,
and is fully accessible when the unit is in the case.
It is used for the selection of the input parameters
and program disable. For the correct input setup,
refer to 3.2 Input Wiring.
SWITCH 1
SNK.: Adds internal 7.8 KΩpull-up resistor to + 12 VDC, IMAX = 1.9 mA
SWITCH 2
SRC.: Adds internal 3.9 KΩpull-down resistor, 8 mA max. @ 30 VDC max.
SWITCH 3
HI Frequency: Removes damping capacitor and allows max. frequency.
LO Frequency: Limits input frequency to 50 Hz and input pulse widths
to 10 msec.
SWITCH 4
LOGIC: Input trigger levels VIL = 1.5 V max.; VIH = 3.75 V max.
MAG: 200 mV peak input (must have SRC on)
SWITCH 5
Enable Programming: Enables programming through the front panel buttons
Disables Programming: Disables the front panel buttons from any
programming changes
SWITCH 6
Enable Averaging: Enables moving windows averaging feature.
Disable Averaging: Disables moving windows averaging feature.
2.0 SETTING THE JUMPER AND SWITCHES
3.0 WIRING THE METER
WIRING OVERVIEW
Electrical connections are made via screw-clamp terminals located on the
back of the meter. All conductors should conform to the meter’s voltage and
current ratings. All cabling should conform to appropriate standards of good
installation, local codes and regulations. It is recommended that the power
supplied to the meter (DC or AC) be protected by a fuse or circuit breaker.
When wiring the meter, compare the numbers embossed on the back of the
meter case against those shown in wiring drawings for proper wire position. Strip
the wire, leaving approximately 0.3" (7.5 mm) bare lead exposed (stranded wires
should be tinned with solder.) Insert the lead under the correct screw-clamp
terminal and tighten until the wire is secure. (Pull wire to verify tightness.)
EMC INSTALLATION GUIDELINES
Although this meter is designed with a high degree of immunity to Electro-
Magnetic Interference (EMI), proper installation and wiring methods must be
followed to ensure compatibility in each application. The type of the electrical
noise, source or coupling method into the meter may be different for various
installations. The meter becomes more immune to EMI with fewer I/O
connections. Cable length, routing, and shield termination are very important
and can mean the difference between a successful or troublesome installation.
Listed below are some EMC guidelines for successful installation in an
industrial environment.
1. The meter should be mounted in a metal enclosure, which is properly
connected to protective earth.
2. Use shielded (screened) cables for all Signal and Control inputs. The shield
(screen) pigtail connection should be made as short as possible. The
connection point for the shield depends somewhat upon the application.
Listed below are the recommended methods of connecting the shield, in order
of their effectiveness.
a. Connect the shield only at the panel where the unit is mounted to earth
ground (protective earth).
b. Connect the shield to earth ground at both ends of the cable, usually when
the noise source frequency is above 1 MHz.
c. Connect the shield to common of the meter and leave the other end of the
shield unconnected and insulated from earth ground.
3. Never run Signal or Control cables in the same conduit or raceway with AC
power lines, conductors feeding motors, solenoids, SCR controls, and
heaters, etc. The cables should be run in metal conduit that is properly
grounded. This is especially useful in applications where cable runs are long
and portable two-way radios are used in close proximity or if the installation
is near a commercial radio transmitter.
4. Signal or Control cables within an enclosure should be routed as far as possible
from contactors, control relays, transformers, and other noisy components.
5. In extremely high EMI environments, the use of external EMI suppression
devices, such as ferrite suppression cores, is effective. Install them on Signal
and Control cables as close to the unit as possible. Loop the cable through the
core several times or use multiple cores on each cable for additional protection.
Install line filters on the power input cable to the unit to suppress power line
interference. Install them near the power entry point of the enclosure. The
following EMI suppression devices (or equivalent) are recommended:
Ferrite Suppression Cores for signal and control cables:
Fair-Rite # 0443167251 (RLC# FCOR0000)
TDK # ZCAT3035-1330A
Steward # 28B2029-0A0
Line Filters for input power cables:
Schaffner # FN610-1/07 (RLC# LFIL0000)
Schaffner # FN670-1.8/07
Corcom # 1 VR3
Note: Reference manufacturer’s instructions when installing a line filter.
6. Long cable runs are more susceptible to EMI pickup than short cable runs.
Therefore, keep cable runs as short as possible.
7. Switching of inductive loads produces high EMI. Use of snubbers across
inductive loads suppresses EMI.
Snubber: RLC# SNUB0000.
REAR TERMINALS
FRONT DISPLAY
115
INPUT SET-UP
DIP SWITCHES
230
POWER
SELECTION
SWITCH
MODE SELECTION JUMPER
6
5
4
3
21
ON
DIS PGM
DIS AVE
MAG
LO Freq.
SRC.
SNK.
EN PGM
EN AVE
LOGIC
HI Freq.
Not Active
Not Active

C
224 www.redlion.net
3.2 INPUT WIRING
Current Sourcing Output Interfacing With TTL
Two Wire Proximity, Current Source
Current Sinking Output
AC Inputs From Tach Generators, Etc.
Magnetic Pickup
Emitter Follower; Current Source
*Switch position is application dependent.
3.1 POWER WIRING
AC Power
Terminal 1: VAC
Terminal 2: VAC
DC Power
Terminal 3: +VDC
Terminal 4: COMM

C
2251-717-767-6511
4.0 REVIEWING THE FRONT BUTTONS AND DISPLAY
In many industrial applications, a meter is required to display the process
time of an operation or event. The pulses from a sensor are received by the
PAXLPT, and then scaled to produce just such a readout. The following formula
will help provide the scaling values to achieve the desired readout.
SF = DR x PPS
WHERE:
SF = Scale Factor
DR = Desired Readout*
PPS = Pulses per Second
To calculate the PPS multiply the RPM (Revolutions per Minute) by the PPR
(Pulses per Revolution) and divide by 60.
RPM x PPR
60
*For applications requiring a decimal point, select and program the
appropriate decimal point. When calculating the Scale Factor, use the whole
value of the number to be displayed, for example, 50.0 minutes, the Desired
Readout in this case is 500. Do not use decimal points in the Desired Readout
when calculating the scale factor.
For calculated SF values less than 59,999
If the Scale Factor is a value less than 59,999, it can be entered directly
into the meter as the Scale Factor and the Scale Multiplier can be left at 1.
For calculated SF values greater than 59,999
If the Scale Factor is a value over 59,999 (maximum value), the Scale
Multiplier must be used to reduce the calculated Scale Factor value until it is
less than 59,999. The Scale Multiplier divides the calculated Scale Factor
value by 1, 10, 100 and 1000, thus reducing the calculated value accordingly.
Select the appropriate Scale Multiplier value that allows the Scale Factor to
be a value under 59,999. Both the Scale Factor and Scale Multiplier can then
be entered into the meter.
Example 1 (6 Digit):
DR = 150 minutes
PPS = 450 RPM x 60 PPR
60
PPS = 450
SF = DR x PPS
SF = 150 x 450
SF = 67,500
Since the SF value is greater than 59,999, the SM will be needed to reduce
the calculated value to value less than 59,999. Using the SM of 10, the 67,500
value is divide by 10, reducing the SF to a value of 6750. The meter can be
programmed for a SF of 6750 and a SM of 10.
Example 2 (5 Digit):
DR = 2 hours and 23 minutes (2-23)
PPS = 138 RPM x 100 PPR
60
PPS = 230
To calculate the Scale Factor for a 5 Digit application, first convert the DR
to its base units.
DR = 2 (hours) x 60 + 23
DR = 120 + 23
DR = 143 minutes
SF = DR x PPS
SF = 143 x 230
SF = 32,890
Since the SF value is less than 59,999, it can be entered directly as the SF
and the SM will be 1. Note: When programmed for the 5 Digit mode, the
meter will convert the D.R. back to the hours and minutes format.
5.0 SCALING THE METER
KEY DISPLAY MODE OPERATION PROGRAMMING MODE OPERATION
PAR Access Programming Mode Store selected parameter and index to next parameter
SNo Function Increment selected digit of parameter value
TNo Function Select digit position in parameter value

C
226 www.redlion.net
The Process Time Indicator has three programmable parameters which are
entered in the sequence shown above, using the front panel push buttons.
Before programming, please refer to the section on Scaling the Meter to
determine the Decimal Position, Scale Factor and Scale Multiplier to use for the
specific application.
Note: Programming mode can be locked out with the Program Disable DIP
switch. With the switch in the Disabled (up) position the meter will not enter
programming mode. Refer to the section on DIP switch setup.
PROGRAMMING MODE ENTRY
Press the PAR key to enter Programming Mode. The meter briefly displays
followed by the first programming parameter described below.
PROGRAMMING PARAMETERS
In programming mode, the display alternates between the parameter and the
current selection or value for that parameter. The dual display with arrows is
used below to illustrate the alternating display. The selection choices or value
range for each parameter is shown to the right of the alternating display.
This parameter selects the decimal point position on the display. The
selection is used when calculating the Scale Factor. This parameter only appears
when the meter is configured for the conventional (6-digit) display.
Press the arrow keys (Sor T) to sequence through the selection list until the
desired selection is shown. Press the PAR key to save the displayed selection
and advance to the next parameter.
The Scale Factor is used in combination with the Scale Multiplier to obtain
the desired process time readout. (See details on Scaling the Meter.)
The Scale Factor is displayed as a five-digit value with one selected digit
flashing (initially digit 5). Press the S(up arrow) key to increment the value of
the selected (flashing) digit. Holding the Skey automatically scrolls the value
of the selected digit.
Press the T(down arrow) key to select the next digit position to the right.
Use the Skey to increment the value of this digit to the desired number. Press
the Tkey again to select the next digit to be changed. Repeat the “select and
set” sequence until all digits are displaying the desired Scale Factor value. Press
the PAR key to save the displayed value and advance to the next parameter.
Holding the Tkey automatically scrolls through each digit position.
The Scale Multiplier is used in combination with the Scale Factor to obtain
the desired process time readout. (See details on Scaling the Meter.)
Press the arrow keys (Sor T) to sequence through the selection list until the
desired selection is displayed. Press the PAR key to save the selection and exit
programming mode.
PROGRAMMING MODE EXIT
The meter exits Programming Mode when the PAR key is pressed to save the
Scale Multiplier selection. The meter briefly displays upon exiting
Programming Mode. All programmed selections are now transferred to the non-
volatile memory and the meter returns to the Process Time display.
(If power loss occurs during programming mode, verify parameter changes
and reprogram, if necessary, when power is restored.)
PROGRAMMING MODE TIME OUT
The Programming Mode has an automatic time out feature. If no keypad
activity is detected for approximately 60 seconds, the meter automatically exits
Programming Mode. The meter briefly displays and returns to the Process
Time display. When automatic timeout occurs, any changes that were made to
the parameter currently being programmed, will not be saved.
FACTORY SETTINGS
The factory settings for the programming parameters are shown above in the
alternating display illustrations. The factory settings can be easily restored by
removing power from the meter, and then pressing and holding the PAR key
while power is reapplied. The meter displays until the PAR key is
released. The normal power-up sequence then resumes, with the factory settings
loaded and saved in non-volatile memory.
Note: The Program Disable DIP switch must be in the Enabled (down)
position to allow loading factory settings. See section on DIP switch setup.
ª
«
ª
«
to
ª
«
DECIMAL POSITION (6-digit version only)
SCALE FACTOR
SCALE MULTIPLIER
6.0 PROGRAMMING THE METER
PROGRAMMING SEQUENCE

C
2271-717-767-6511
OMASTER AND FOLLOWER MODES OF OPERATION
OPROGRAMMABLE SETPOINTS:
TWO SPEED (Master)
TWO RAMP RATE (Master)
TWO RATIO (Follower)
TWO RATIO RAMP RATE (Follower)
ONE JOG SPEED
ONE JOG RAMP RATE
O8 CHARACTER BY 2 LINE ALPHANUMERIC DISPLAY
OFOUR PROGRAMMABLE INDICATION DISPLAYS
OON LINE SETPOINT INCREMENT/DECREMENT
OSELECTABLE DISPLAY SCROLLING
OABILITY TO LIMIT OPERATOR ACCESS TO PROGRAMMING
PARAMETERS
OENGLISH PROGRAMMING MENUS
OFREQUENCY INPUTS ARE SWITCH SELECTABLE FOR A
VARIETY OF SOURCES
OPROGRAMMABLE CONTROL INPUTS
OTHREE SOLID STATE OUTPUTS
OVARIABLE SPAN (5 TO 15 VDC) ISOLATED DRIVE OUTPUT
OFEEDBACK LOSS DETECTION
OPROGRAMMABLE ALARM TYPES
OINTERNAL OR EXTERNAL DRIVE OUTPUT REFERENCE
ODIAGNOSTICS MODE
O115/230VAC SWITCH SELECTABLE
ONON-VOLATILE MEMORY
ONEMA 4X/IP65 SEALED FRONT PANEL BEZEL
DESCRIPTION
The Motor Drive Controller (MDC) regulates motor speed by varying an
isolated DC control signal to a motor drive system. There are two modes of
operation, Master and Follower.
Master Mode provides control of a motor directly via programmed speed
setpoints in the MDC. Regulation is maintained by a feedback frequency to the
MDC taken from the motor shaft or a downstream shaft pulse encoder. Follower
Mode controls a motor’s speed as a ratio to a second motor’s speed or outside
frequency source. Ratio setpoints are programmed into the MDC causing the
motor to “follow” the lead motor or frequency at a fixed speed ratio.
Master Mode has two speed setpoints and two ramp setpoints. Follower
Mode has two ratio setpoints and two ramp setpoints. Both modes share a jog
speed setpoint and a jog ramp setpoint. All setpoints are retained in non-volatile
memory when the unit is powered down.
The Motor Drive Controller has the added feature of allowing real time
adjustment of the Speed (Master Mode) or Ratio (Follower Mode) setpoint
while the unit is operating a motor drive system. The setpoint may be adjusted
via the front panel keypad using the “Up” or “Down” arrow keys, or via 2 User
Inputs programmed for increment setpoint and decrement setpoint.
User flexibility is provided through the two-line by eight-character
alphanumeric display. The display features English language menus for easy
viewing and simplified programming. The four scroll-through indication
displays can be programmed to show various parameters and to automatically
scroll, if desired. A program disable DIP switch used with an external User
Input can be utilized to protect the settings and guarantee that no unwanted
changes occur during operation.
There are five dedicated control inputs on the MDC:
RUN
RAMP STOP
FAST STOP
JOG
OPEN LOOP
There are six programmable control inputs: two front panel function keys
and four remote user inputs. The F1 and F2 keys are factory programmed for
RUN and R-STOP respectively. This eliminates the need for external switches
in some applications.
There are three solid state outputs, two are programmable alarms and one is
a dedicated Drive Enable output. Programmable alarm functions include:
High Alarm
Low Alarm
Deviation Alarm
Zero Speed
Disabled
These may be programmed for boundary or latching operation, high or low
acting.
Changing speed setpoints and programming information is easily
accomplished by scrolling through menus and selecting the correct parameter.
There are three main modules or menu loops:
Display Module
User Setpoint Module
Programming Module
Scaling is accomplished by entering the desired values for feedback pulses
per revolution (PPR), the maximum RPM, and the maximum display value.
MOTOR DRIVE CONTROLLER
DIMENSIONS In inches (mm) Note: Recommended minimum clearance (behind the panel) for
mounting clip installation is 3.0” (76.2) H x 4.0” (101.6) W. PANEL CUT-OUT

C
228 www.redlion.net
DESCRIPTION (Cont’d)
The unit is factory configured for an isolated 0 to 10 VDC drive output
signal. The output drive signal can be adjusted to span from 0 to 15 VDC via an
accessible potentiometer. The drive output is jumper selectable for an external
reference. To use the external reference, the MDC is connected to the drive in
place of an external potentiometer.
The Motor Drive Controller has a light weight, high impact plastic case with a
clear viewing window. The sealed front panel meets NEMA 4X/IP65
specifications for wash-down and/or dusty environments, when properly installed.
Plug-in style terminal blocks simplify installation and wiring change-outs.
SAFETY SUMMARY
All safety related regulations, local codes and instructions that appear in the
manual or on equipment must be observed to ensure personal safety and to
prevent damage to either the instrument or equipment connected to it. If
equipment is used in a manner not specified by the manufacturer, the protection
provided by the equipment may be impaired.
Do not use this unit to directly command motors, valves, or other actuators
not equipped with safeguards. To do so, can be potentially harmful to persons
or equipment in the event of a fault to the unit.
SPECIFICATIONS:
1. DISPLAY: 2x8, 0.3" (7 mm) high characters, negative image transmissive
LCD, with red LED backlighting.
2. POWER: 115/230 VAC ±10%, 50/60 Hz, 10 VA, switch selectable.
3. MEMORY: Non-volatile E2PROM retains all programming information and
values when power is removed or interrupted.
Power Cycles(ON/OFF): 100,000 min.
Data Retention: 10 years min.
4. SENSOR POWER: +12 VDC ±25% @ 100 mA.
5. INPUTS (LEAD AND FEEDBACK): DIP Switch selectable to accept input
pulses from a variety of sources including outputs from CMOS or TTL
circuits and all standard RLC sensors.
Input Freq:
1 Hz to 20 KHz (Master Mode), 1 Hz to 12 KHz (Follower Mode).
Logic: Input trigger levels VIL= 1.5 VMAX; VIH= 3.75 VMIN.
Current Sinking: Internal 7.8 KΩpull-up to +12 VDC, IMAX= 1.6 mA.
Current Sourcing: Internal 3.9 KΩpull-down, 7.3 mA @ 28 VDCMAX.
Magnetic Pickup:
Sensitivity: 200 mV PEAK.
Hysteresis: 100 mV.
Input impedance: 3.9 KΩ@ 60 Hz.
Maximum input voltage: ±50 V PEAK.
Note: For magnetic pickup input, the Sink/Source DIP switch must be in the
SRC position.
6. CONTROL LOOP RESPONSE: 10 msec (Master Mode), 20 msec
(Follower Mode).
7. CONTROL ACCURACY:
0.01% of Speed Setpoint (Master Mode)
0.02% of Ratio Setpoint (Follower Mode)
Minimum Frequency Resolution: 0.00125 Hz
8. ERROR TRIM: ±4095 BITS.
9. ERROR GAIN: 0 to 99%.
10. RAMP RATE: (Ramp 1, Ramp 2, and Jog Ramp)
1 Hz to 20 KHz/sec, set in user units/sec.
0.0001 to 1.9999 ratio units/sec (Ramp 1 & 2 in Follower Mode).
11. CONTROL INPUTS:
Internal 10 KΩpull-up to +5 VDC. VIL = 1.0 VMAX, VIH = 4.0 VMIN.
Response time = 10 msec nominal, 30 msec max.
INPUTS SWITCH CONNECTIONS
RUN Momentary N.O.
FAST STOP Momentary N.C.
RAMP STOP Momentary N.C.
JOG Sustained N.O.
OPEN LOOP Maintained
USER INPUTS(4) Function Specific
12. OUTPUTS:
Drive Enable, Alarm 1, and Alarm 2:
Solid state, current sinking NPN Open collector transistor.
VCE = 1.1 VSAT @ 100 mA max., VOH= 30 VDC max.
(Internal zener diode protection.)
Response Time:
Drive Enable: 10 msec nominal; 30 msec max.
Alarm 1&2: Programmable
Normal: 1 sec nominal, 2 sec max.
Fast: 20 msec nominal, 40 msec max.
Isolated Drive Output: Jumper selectable internal/external reference 5 mA max.
Internal Reference: Pot adjustable from 0 to 5 VDC min. through 0 to 15
VDC max. span.
External Reference: 15 VDC max. (positive polarity only).
Isolation: 2300 Vrms for 1 minute
250 V working
13. CERTIFICATIONS AND COMPLIANCES:
ELECTROMAGNETIC COMPATIBILITY
Note: Refer to the EMC Installation Guidelines for additional information.
14. ENVIRONMENTAL CONDITIONS:
Operating Temperature: 0 to 50°C
Storage Temperature: -40 to 70°C
Operating and Storage Humidity: 85% max. RH (non-condensing) from
0°C to 50°C.
Altitude: Up to 2000 meters
15. CONSTRUCTION: High impact plastic case with clear viewing window.
The front panel meets NEMA4 X/IP65 requirements for indoor use when
properly installed. Installation Category II, Pollution Degree 2. Panel gasket
and mounting clips included.
16. WEIGHT: 1.5 lbs. (0.68 Kg).
PROGRAMMING
Programming the MDC unit is accomplished through the front panel keypad,
which allows the user to enter into Main Menus, Sub-Menus, and Edit Menus.
The English language prompts, the flashing parameter values, and the front panel
keypad aid the operator during programming. In the normal run mode, the main
display loop allows the user to scroll
through the four programmable
indication displays, using the
direction keys. From the main loop,
setpoints, alarm values and a gain
value may be accessed directly for
changes, without entering the
programming loop. All other
parameters are accessed through the
pro-gramming loop, which can be
set to require an access code number
for loop entry. In the programming
loop, parameters can be viewed or
changed and the operator can exit
anywhere in the loop.
Immunity to EN 50082-2
Electrostatic discharge EN 61000-4-2
Level 3; 8 Kv air
Level 2; 4 Kv contact
Electromagnetic RF fields EN 61000-4-3 Level 3; 10 V/m
80 MHz - 1 GHz
Fast transients (burst) EN 61000-4-4 Level 4; 2 Kv I/O
Level 3; 2 Kv power
Simulation of cordless telephone
Power frequency magnetic fields
RF conducted interference
ENV 50204
EN 61000-4-8
EN 61000-4-6
Level 3; 10 V/m
Level 4; 30 A/m
Level 3; 10 V/rms
200 Hz, 50% duty cycle
90 MHz ±5 MHz
150 KHz - 80 MHz
Emissions to EN 50081-2
RF interference EN 55011 Enclosure class A
Power mains class A

C
2291-717-767-6511
PROGRAMMABLE FUNCTIONS
MODES
Master
Follower
SCALING
Pulses per Revolution Feedback (PPR FB) ranges from 1 to 59999
Maximum RPM Feedback (MAX RPM FB) ranges from 1 to 59999
Display Decimal Point (DSP DP) ranges from 0 to 0.00000
Maximum Display Units (DSP UNIT) ranges from 1 to 99999
*Pulses per Revolution Lead (PPR LD) ranges from 1 to 59999
*Maximum RPM Lead (MAX RPM LD) ranges from 1 to 59999
*These parameters are available in Follower Mode only.
Note: Values may be programmed in the range listed, provided that the
maximum equivalent frequency does not exceed 20971 Hz. If this occurs,
“OVFLW” will flash and a new entry will be required.
SETPOINTS
2 SPEED (Master Mode) -ranges from 0 to 99999 (or Display Unit Max.).
2 RAMP RATE (Master Mode) -ranges from 1 to 99999.
2 RATIO (Follower Mode) -ranges from 0.0000 to 1.9999.
2 RAMP RATE (Follower Mode) -ranges from 0.0001 to 1.9999 ratio units.
1 JOG SPEED -ranges from 0 to 99999 (or Display Unit Maximum).
1 JOG RAMP RATE -ranges from 1 to 99999.
2 ALARM -ranges from 0 to 99999.
1 GAIN -ranges from 0 to 99.
Note: Values may be programmed in the ranges listed, provided that the
maximum equivalent frequency does not exceed 20,971 Hz ( 20 KHz/sec for
Ramp Rate). If this occurs, a message will flash and the maximum is
automatically entered by the unit.
USER INPUTS
There are four programmable external user inputs and two programmable
front panel function keys. The options for each user input are the same, except
for the two function keys (F1/RUN & F2/STP), which have additional options.
No Mode:
If a user input terminal or a function key is activated, it will be ignored.
View Display 1-4:
Causes the selected indication display (1, 2, 3, or 4) to be displayed and held
from anywhere in the main display loop.
Change Display:
Causes the indication display to toggle to the next indication display.
Reset Alarm(s) Output:
Places the alarm(s) output(s) in its inactive state.
Setpoint Select/Toggle:
Selects Setpoint 1 or Setpoint 2 for the active speed (or ratio) setpoint. This
is a maintained select action for User Inputs 1 to 4, and a momentary toggle
action for F1 or F2.
Ramp Select/Toggle:
Selects Ramp 1 or Ramp 2 for the active acceleration and deceleration ramp
rate. This is a maintained select action for User Inputs 1 to 4, and a
momentary toggle action for F1 or F2.
Ramp Override:
Overrides the acceleration/deceleration ramp routine causing the unit to jump
to the ramp endpoint.
Setpoint Increment:
Only an external User Input can be used for this option. The currently active
speed or ratio setpoint is incremented when the User Input is made active. If
the input remains active for more than 5 display unit increments, the scroll
rate will progressively increase.
Setpoint Decrement:
Only an external User Input can be used for this option. The currently active
speed or ratio setpoint is decremented when the User Input is made active. If
the input remains active for more than 5 display unit increments, the scroll
rate will progressively increase.
Program Disable:
Only an external user input can be used for this option. When used with the
program disable DIP switch, this option can limit operator access to
programmable parameters.
Run (F1 only):
Pressing the F1 button causes the MDC to accelerate the motor from Stop
mode to the active speed setpoint using the active ramp rate.
R-Stop(F1 or F2 only):
Pressing the function key programmed for R-Stop causes the unit to
decelerate the motor from its active speed to Stop mode using the active ramp
rate.
F-Stop(F1 or F2 only):
Pressing the function key programmed for F-Stop causes the unit to execute
a fast stop, taking the motor from its current speed immediately to the stop
mode. The deceleration is limited only by the motor and drive.
Jog(F1 or F2 only):
This function is only available from the Stop mode. Pressing and holding the
function key programmed for Jog causes the unit to accelerate the motor to
the jog speed setpoint using the jog ramp rate.
ALARMS
Type Of Alarm:
High Alarm: Alarm output activates when the feedback input is greater than
or equal to the alarm value.
Low Alarm: Alarm output activates when the feedback input is less than or
equal to the alarm value.
Deviation Alarm: The alarm output activates when the feedback input is
outside a ± band.
Zero Speed Alarm: Alarm output activates when the feedback input receives
no input pulse for at least one second.
Disabled: The alarm output is inactive when disabled.
Phase:
Each output can have its active logic state set for Positive phase (ON) or
Negative phase (OFF).
Latched Or Boundary:
An alarm programmed for a latched output stays active until it is manually
reset by a User Input. An alarm programmed for boundary output stays active
as long as the alarm condition exists, after which the output returns to its
inactive state.
Fast Or Normal Update:
The normal update rate for the alarm outputs is once each second. The fast
update rate occurs at an interval less than or equal to 40 msec.
INDICATION DISPLAYS
If an indication display is to show two different numeric values, one for each
line, there will be a single or dual character mnemonic to the left of the numeric
value. Each line of each indication display can be programmed to show
mnemonics or a numeric value. The following list shows the single or dual
character mnemonics that will be displayed when value is selected and the
mnemonics for each programmable option.
STATUS DISPLAYS
Operating Status:
Setpoint 1, ramp rate 1, Stop mode
Alarm Output Status:
Alarm 1 active, alarm 2 inactive
Operating Status:
The operating status display indicates the currently active speed or ratio
setpoint (S1 or S2), the currently active ramp rate (R1 or R2), and the mode
of operation (RUN, STP, or JOG). An arrow will replace the “R” for the
currently active ramp rate indication when an actual ramp up or down is in
progress.
Alarm Status:
The alarm status display indicates that an alarm output is active when the
corresponding output number (1 or 2) is displayed. When an alarm output is
inactive, a dash is displayed.
VAL MNE DESCRIPTION
S1 99999 SETPT. 1 Speed or ratio setpoint 1
S2 99999 SETPT. 2 Speed or ratio setpoint 2
Sp 99999 SPEED Actual speed in user display units (feedback)
R 1.999 RATIO Actual ratio (follower mode)
%D 100.0 % DEV. % deviation of actual speed from target speed
%O 100.0 % OUTPUT Analog drive output- % of full scale voltage
FB 20971 FB. FREQ Feedback frequency in pulses/sec (Hz.)
LD 12000 LD. FREQ Lead frequency in pulses/sec (Hz.)
A1 99999 ALARM 1 Alarm 1 setpoint
A2 99999 ALARM 2 Alarm 2 setpoint
Tr 4095 TRIM Error correction in bits (-4095 to +4095)

C
230 www.redlion.net
OPERATOR ACCESS
This is used with the program disable DIP switch or an external user input
that is selected for the program disable function. When a setpoint is selected as
NO, it can be viewed, but NOT changed from the front panel keypad. The
following setpoint values can be disabled from front panel access
programming:
Speed/Ratio Setpoint 1 and 2 Jog Speed
Ramp Rate 1 and 2 Jog Ramp
Alarm Setpoint 1 and 2 Gain
Setpoint Scroll Menu
USER SETTINGS
The operator can reset ALL parameters to the factory settings if desired.
PROGRAM DIAGNOSTICS
This allows testing of the various MDC inputs and outputs. It is especially
useful after unit installation to independently test the operation of external
switches, relays, the feedback transducer, and the motor drive system.
Inputs - The MDC displays an alphanumeric character to indicate a Dedicated
Function Input or a User Input is active. This allows the user to check switch
operation and wiring connections to the Inputs.
Alarm Outputs - The up and down arrow keys are used to select an alarm
output and set it to the active or inactive state. This allows the user to check
the operation of devices wired to the alarm outputs and the wiring
connections.
Drive Output - This function allows the user to test the Drive System. A %
Output value is entered through the front panel keypad causing the motor to
run at the corresponding open loop speed. The display indicates the motor’s
feedback frequency.
PROGRAM SECURITY
The programmable code number is used in conjunction with the program
disable DIP switch and/or a user input programmed for the program disable
function to limit operator access to programming.
ORDERING INFORMATION
FOLLOWER MODE APPLICATION
A fertilizer production facility is mixing pellets containing Nitrogen with
pellets that contain Phosphorus. A chemical ratio of 1:1 is determined by the
speed of two different conveyors. Because of differences in the gearing of
the conveyor and concentration of the pellets, the Nitrogen conveyor motor
must run at 3 times the speed of the Phosphorus conveyor motor in order to
produce a 1:1 mixture. The maximum speed of both motors is 2000 RPM.
Set the follower MDC scaling to produce a 1:1 mixture of Nitrogen and
Phosphorus when a setpoint of 1.0000 is entered. Display speed units are in
RPM’s. Both the lead and feedback frequency are taken from 60 tooth gears
on each motor shaft.
1) Choose the Phosphorus conveyor motor for the follower MDC. It runs
slower than the Nitrogen conveyor motor.
2) Set the Pulses per revolution feedback to 60.
3) Set the MAX RPM feedback to 2000. This is the conveyor motor’s
maximum operating speed.
4) Set display decimal point to 0.
5) Set display unit to 2000. The display speed unit maximum is 2000 at a
MAX RPM FB of 2000. If the display units wanted were conveyor
feet/minute or Phosphorus pellets in lbs/sec, the equivalent display value
for 2000 RPM would be entered.
6) Set the pulses per revolution lead to 60.
7) Setting the MAX RPM Lead:
This is the Lead RPM that would be necessary to have a 1:1 mixture if
the Follower Speed was MAX RPM FB (2000 RPM). Since the Nitrogen
conveyor motor must run 3 times as fast as the Phosphorus motor, MAX
RPM LD = 3 * 2000 = 6000 RPM. Set MAX RPM LD = 6000 RPM. This
is the correct value, even though the Nitrogen conveyor motor would never
actually run at 6000 RPM. A ratio setpoint of 1.0000 on the MDC is now
equal to a 1:1 mixture of Phosphorus and Nitrogen.
MASTER MODE APPLICATION
A pump delivers a maximum of 30.0 gallons per minute with a shaft speed of
1750 RPM. A shaft pulse encoder generates 60 pulses/revolution. Set the MDC
scaling to control and display pumping speed in tenths of a gallon/minute. In the
Program Scaling Module:
1) Set the pulses per revolution feedback to 60.
2) Set the maximum RPM feedback to 1750. This is the pump shaft’s maximum
operating speed.
3) Set display decimal point to 0.0. Display units are in 0.1 gpm.
4) Set max display units to 30.0. The display speed unit maximum is 30.0 at a MAX
RPM FB of 1750.
MODEL NO. DESCRIPTION PART NUMBERS
115/230VAC
MDC Motor Drive Controller with Red Backlighting MDC00100

C
2311-717-767-6511
OMICRO-COMPUTER CIRCUITRY
The exclusive one chip Micro-computer LSI-circuit and crystal time base is
used to accurately provide a wide measurement range.
OMEMORY
The last maximum/minimum reading will be automatically stored in memory
and can be displayed by pressing the “MEMORY” switch.
OERROR-FREE READING
Highly visible LCD display, with Leading Zero Blanking gives exact RPM
with no guessing or errors and saves battery energy.
ORUGGED AND LIGHTWEIGHT CONSTRUCTION
The use of durable, long-lasting components, including a strong, lightweight
ABS-plastic housing assures maintenance-free performance for many years.
The housing has been carefully shaped to fit comfortably in either hand.
OBATTERIES INCLUDED
DESCRIPTION
The CONTACT TACHOMETER (Model HHT) incorporates precision
bearings instead of gears to ensure long life while providing minimal loading to
the rotating shaft. A built-in photo-sensor and slotted disc detect the number of
revolutions for a high degree of accuracy. By simply pressing the “MEASURE”
button and lightly contacting the conical tip against the center hole of a rotating
shaft, the RPM will be displayed and updated every second. By attaching the
circumferential speed wheel (included), the Model HHT can measure surface
speed in “Switch Selectable” units of either feet per minute (FT/MIN) or meters
per minute (M/MIN).
The PHOTO TACHOMETER (Model HHTP) provides for non-contact RPM
measurements which enhances operator safety when measuring high speed
shafts. By pressing the “MEASURE” button and aiming the Visible Light Beam
at a piece of reflective tape (included) on the rotating shaft, RPM will be
displayed and updated every second. A display indicator blinks once each
revolution to ensure that the reflecting mark is within the 2” to 12” sensing
distance of the Model HHTP.
Both units can display Memory values which are obtained immediately
before turning off the “MEASURE” button. The last value, Maximum value
and Minimum value can be displayed by pushing the “MEMORY” button as
follows:
1. First Push and Hold = Last value displayed:
“LA” and last value alternately displayed.
2. Second Push and Hold = Maximum value displayed:
“UP” and maximum value alternately displayed.
3. Third Push and Hold = Minimum value displayed:
“DN” and minimum value alternately displayed.
These memory features are useful when the measurement to be made is in a
“hard-to-access” area where the display is not visible to the operator.
A“LO” (low battery) display is incorporated in both units and is a visible
reminder when batteries are to be replaced.
BATTERY REPLACEMENT
A) When it is necessary to replace the batteries (battery voltage less than
approx. 4.5 V), “LO” will appear in the display.
B) Slide the battery cover away from the instrument and remove the batteries.
C) Install new batteries correctly into the case. Permanent damage to the
tachometer circuit may result from incorrect installation.
CONTACT TACHOMETER SPECIFICATIONS
1. MEASUREMENT RANGE:
0.5 to 8,000 RPM
0.05 to 1999.9 m/min.
0.2 to 6560 ft/min.
2. RESOLUTION:
0.1 RPM (0.5 to 999.9 RPM)
1 RPM (over 1000 RPM)
0.01 m/min. (0.05 to 99.99 m/min.)
0.1 m/min. (over 1000 m/min.)
0.1 ft/min. (0.1 to 999.9 ft/min.)
1 ft/min. (over 1000 ft/min.)
3. ACCURACY: ±(0.05% full scale + 1 digit)
4. SAMPLE TIME: 1 sec. (over 6 RPM)
5. POWER CONSUMPTION: Approximately 10 mA.
6. ACCESSORIES INCLUDED: RPM adapters (1 cone, 1 funnel), Surface
speed test wheel, Carrying Case, Instruction Manual.
7. WEIGHT: 0.58 lb. (260 g) including battery
PHOTO TACHOMETER SPECIFICATIONS
1. MEASUREMENT RANGE: 5 to 99,999 RPM (one reflecting mark)
2. RESOLUTION: 0.1 RPM (0.5 to 999.9 RPM)
1 RPM (over 1000 RPM)
3. ACCURACY: ±(0.05% full scale + 1 digit)
4. SAMPLING TIME: 1 sec. (over 60 RPM)
5. DETECTING DISTANCE: (2-6 inches) (50 to 150 mm) Typical max. 12
inches (300 mm) depending upon ambient light.
6. POWER CONSUMPTION: Approximately 150 mA (Operation).
Approximately 20 mA (Memory Recall)
7. ACCESSORIES INCLUDED: Carrying Case, 23.6 inches (600 mm)
Reflective tape, Instruction Manual.
8. WEIGHT: 0.55 lb. (250 g) including battery
COMMON SPECIFICATIONS
1. DISPLAY: 5-digit, 0.4” high LCD.
2. MEMORY TIME: 10 sec. nominal.
3. TIME BASE: Quartz crystal.
4. BATTERY: 4 x 1.5 V AA size.
5. OPERATING TEMPERATURE: 32°F to 120°F (0
°
C to 50
°
C).
6. SIZE: 6.7″x 2.8″x 1.5″(170 mm x 72 mm x 37 mm)
MODELS HHT & HHTP - ACCURATE 5-DIGIT PRECISION MEASURING HAND HELD TACHOMETERS
ORDERING INFORMATION
MODEL NO. DESCRIPTION PART NUMBER
HHT LCD Hand Held Contact Tachometer HHT00000
HHTP LCD Hand Held Photo Tachometer HHTP0000
-Replacement 1/2″x 2′Reflective Tape For HHTP HHTRT000
-HHT Rubber Wheel HHTWHL00
-HHT Cone Point Disc With Shaft HHTCONE0
-HHT Concave Disc HHTCONC0
Model HHT
Contact Type
Model HHTP
Photo Type

C
232 www.redlion.net
This page intentionally left blank.

2331-717-767-6511
TIMERS
D
The Trusted Source for
Innovative Control
Solutions

Page 237 Page 249 Page 263 Page 268
D
234 www.redlion.net
QUICK Specs
TIMER W/CONTROL
8 Digit, .35" (9mm) Reflective,
Green and Red Backlight LCD
8 Digit, .46" (12mm)
Reflective, Green and
Red Backlight LCD
2 x 6 Digit,
Main Display .3" (7mm)
Sec. Display .2" (5mm)
Reflective and Backlight LCD
6 Digit, .56" (14mm)
Standard Green or Sunlight
Readable Red LED,
Adjustable Intensity
Display
1/32 DIN Miniature Timer Timer with Output Option Card
Capability 1/16 DIN Timer with Control 1/8 DIN Timer with Output
Option Card Capability
Switch Contact,
NPN O. C. or Voltage
10 V to 300 VAC or DC
Switch Contact,
NPN O. C. or Voltage
9 V to 28 VDC
Switch Contact,
NPN O. C., PNP O. C.,
or VCME through VCMH
Switch Contact,
NPN O. C., PNP O. C.,
or VCME through VCMH
.001, .01, .1 and 1 Second
.1 and 1 Minute
.01, .1 and 1 Hour
Hour: Minutes: Seconds
.001, .01, .1 and 1 Second
.01, .1 and 1 Minute
.01, .1 and 1 Hour
.01, .1 and 1 Min/Sec
.01, .1 and 1Hr/Min
Hours/Minutes/Seconds
Days/Hours/Minutes
.001, .01, .1 and 1 Second
.001, .01, .1 and 1 Minute
Min/Sec
Min/Sec/Tenth
Hr/Min/Sec
Hr/Min/Tenth
Hr/Min/Hun
.001, .01, .1 and 1 Second
.001, .01, .1 and 1 Minute
.001, .01, .1 and 1 Hour
Minutes/.001, .01, .1, 1 Sec
Hours/.001, .01, .1, 1 Min
Hours/Minutes/Seconds
Front Panel, Remote Front Panel, Remote Front Panel, Remote, Automatic Front Panel, Remote, Automatic
No Single Form C Relay
Dual Sinking
Single or Dual Form A
Current Sinking
Dual Form C
Quad Form A
Quad Sinking
Quad Sourcing
No RS232
RS485 RS485
RS232
RS485
Modbus
DeviceNet
Profibus
Ethernet w/ICM8
No Programmable User Inputs Programmable User Inputs
and Front Buttons
Programmable User Inputs
and Front Buttons,
Cycle Counting Capability
3 Volt Lithium Battery,
Backlighting 9 - 28 VDC
@ 35 mA
9 to 28 VDC
85 to 250 VAC
11 to 14 VDC
24 VAC
85 to 250 VAC
11 to 36 VDC
24 VAC
28 mm (H) x 51 mm (W) 39 mm (H) x 75mm (W) 49 mm (H) x 49 mm (W) 50 mm (H) x 97mm (W)
Time Ranges
Reset
Setpoint
Capability
Communications
Power Source
Dimensions
(Height)x (Width)
Other Features/
Options
Input
Description
CUB7T CUB5T C48T PAXTM
TIMER
Timers
Page Number
*See website for product information.

Page 296 *
D
2351-717-767-6511
TIMER W/CONTROL
QUICK Specs
6 Digit, .56" (14mm)
Standard Green or Sunlight
Readable Red LED,
Adjustable Intensity
4 Digit, .4" (10mm) LED
4 Digit, .5" (13mm) LCD
Display
1/8 DIN Real Time Clock with
Output Option Card Capability Timer with Control
Switch Contact,
NPN O. C., PNP O. C.,
or VCME through VCMH
Switch Contact,
NPN O. C., PNP O. C., or
VCME through VCMH
.001, .01, .1 and 1 Second
.001, .01, .1 and 1 Minute
.001, .01, .1 and 1 Hour
Minutes/.001, .01, .1, 1 Sec
Hours/.001, .01, .1, 1 Min
Hours/Minutes/Seconds
Days/Hours/Minutes
.01, .1 and 1 Second
.01, .1 and 1 Minute
.01, .1 and 1 Hour
Minutes/Seconds Hours/Minutes
Front Panel, Remote, Automatic Front Panel, Remote, Automatic
Dual Form C
Quad Form A
Quad Sinking
Quad Sourcing
Single or Dual Form C,
Solid State
RS232
RS485
Modbus
DeviceNet
Profibus
Ethernet w/ICM8
No
Programmable User Inputs
and Front Buttons,
Cycle Counting Capability
No
85 to 250 VAC
11 to 36 VDC
24 VAC
115/230 VAC
11 to 14 VDC
50 mm (H) x 97mm (W) 72 mm (H) x 72 mm (W)
Time Ranges
Reset
Setpoint
Capability
Communications
Power Source
Dimensions
(Height)x (Width)
Other Features/
Options
Input
Description
PAXCK LIBT
Timers
Page Number
*See website for product information.

D
236 www.redlion.net
REPLACEMENT Guide
WHAT YOU’RE USING NOW CURRENT PRODUCT
C48TCUBT
QDisplay: 2 x 6, Main Display .3" (7 mm)
Secondary Display .2" (5 mm)
Reflective LCD
QPower Source: 85 to 250 VAC,
11 to 36 VDC
QDisplay: .2" (5 mm) Reflective LCD
QPower Source: 115/230 VAC,
10 to 28 VDC, 10 to 28 VAC
C48TLNXT
QDisplay: 2 x 6, Main Display .3" (7 mm)
Secondary Display .2" (5 mm)
Reflective LCD
QPower Source: 85 to 250 VAC,
11 to 36 VDC
Panel Cut-Out Dimension Differences
QDisplay: .3" (8 mm) Reflective LCD
QPower Source: 115/230 VAC,
11 to 14 VDC, 21.5 to 30 VAC
C48TLIBT
QDisplay: 2 x 6, Main Display .3" (7 mm)
Secondary Display .2" (5 mm)
Reflective LCD
QPower Source: 85 to 250 VAC,
11 to 36 VDC
Panel Cut-Out Dimension Differences
QDisplay: 4 Digit, .4" (10 mm)
LED OR .5" (13 mm) LCD
QPower Source: 115/230 VAC,
11 to 14 VDC
MODEL NUMBER FEATURES MODEL NUMBER FEATURES
Note: Refer to the current product literature, as some differences may exist.

D
2371-717-767-6511
O
9 PROGRAMMABLE TIMER RANGES
O
3 (8 Digit 0.35") LCD DISPLAY OPTIONS (Reflective, Red
Transmissive, Yellow/Green Transmissive) with “Timer Active”
annunciator
O
CONTACT INPUT
O
REPLACEABLE INTERNAL LITHIUM BATTERY (provides up to 6
years of uninterrupted operation)
O
BOTH FRONT PANEL PROGRAM AND RESET BUTTONS ARE
INDIVIDUALLY ENABLED
O
WIRE CONNECTIONS VIA SCREW CLAMP TYPE TERMINALS
O
FRONT PANEL AND REMOTE RESET INPUT
O
NEMA 4X/IP65 SEALED FRONT BEZEL
DESCRIPTION
The CUB7T0 is an 8-digit miniature programmable timer with large 0.35
inch (8.90 mm) high digits. It has an LCD read-out available in Positive Image
Reflective (CUB7T000), Negative Image Transmissive with yellow/green
backlighting (CUB7T010) or red backlighting (CUB7T020). The backlight
versions require an external 9 to 28 VDC power supply. The display will wrap
around from a full display of “99999999” to “00000000” when an overflow
occurs. An annunciator, located in the upper left hand corner of the display,
blinks at 2 Hz when the signal input is activated. The CUB7T0 operates from
a switch contact or an open collector NPN transistor.
The CUB7T timers use a CMOS LSI chip, mounted on a gold-plated
substrate, that is electrically connected by ultrasonic wire-bonding. Proven
micro-electronic assembly and manufacturing techniques provide these units
with the reliability and dependability required for industrial service.
The CUB7T series is housed in a lightweight, high impact plastic case with
a clear viewing window. The sealed front panel with the silicone rubber buttons
meets NEMA 4X/IP65 specifications for wash-down and/or dusty
environments, when properly installed.
SAFETY SUMMARY
All safety related regulations, local codes and instructions that appear in the
manual or on equipment must be observed to ensure personal safety and to
prevent damage to either the instrument or equipment connected to it. If
equipment is used in a manner not specified by the manufacturer, the protection
provided by the equipment may be impaired.
Do not use this unit to directly command motors, valves, or other actuators
not equipped with safeguards. To do so, can be potentially harmful to persons
or equipment in the event of a fault to the unit.
SPECIFICATIONS
1. DISPLAY: 8-digit LCD, 0.35" (8.90 mm) high digits.
2. POWER SOURCE: Replaceable Internal 3.0 V lithium battery to provide up
to 6 years of continuous operation. (Battery life is dependent upon usage.
Contacts that remain closed for long periods of time reduce battery life.)
3. BACKLIGHT POWER REQUIREMENTS: 9 to 28 VDC; 35 mA. typical,
50 mA max. Above 26 VDC, derate max. operating temperature to 40°C.
Must use a NEC Class 2 or SELV rated power supply.
4. ANNUNCIATOR: Annunciator in the upper left corner of the display flashes
at a 2 Hz rate when the signal input is activated.
5. SIGNAL INPUT: (LS terminal #4)
Contact Input (CUB7T0xx): Switch Contact or solid state Transistor Switch
to Common. Contact burden 15 μA max. A maintained closed switch to
COM will actuate the timer.
6. REMOTE RESET: 15 msec min. pulse width (active low) from 3.0 V
bipolar output, an open collector transistor, or a switch contact to common.
7. ACCURACY: 0.025%
8. ENVIRONMENTAL CONDITIONS:
Operating Temperature Range: 0 to 50°C Derate max. operating
temperature to 40°C above 26 VDC (Backlight versions).
Storage Temperature: -30 to 80°C
Operating and Storage Humidity: 85% max. relative humidity (non-
condensing) from 0°C to 50°C.
Vibration According to IEC 68-2-6: Operational 5 to 500 Hz, in X, Y, Z
direction for 1.5 hours, 5g’s.
Shock According to IEC 68-2-27: Operational 30 g, 11 msec in 3 directions.
Altitude: Up to 2000 meters
9. CONNECTIONS: Wire clamping screw terminals.
Wire Strip Length: 0.3" (7.5 mm)
Wire Gage: 30-14 AWG copper wire
Torque: 5 inch-lbs (0.565 N-m) max
10. CERTIFICATIONS AND COMPLIANCES:
SAFETY
UL Listed, File # E137808, UL508, CSA C22.2 No. 14-M95
LISTED by Und. Lab. Inc. to U.S. and Canadian safety standards
Type 4X Indoor Enclosure rating (Face only), UL50
MODEL CUB7T0 PROGRAMMABLE GENERAL PURPOSE ELECTRONIC TIMER
DIMENSIONS In inches (mm) Note: Recommended minimum clearance (behind the panel) for mounting clip installation is
2.15" (53.4) H x 3.00" (140) W.
PANEL CUT-OUT
C
C
US LISTED
US LISTED
UL
R
IND. CONT. EQ.
51EB
CAUTION: Risk of Danger.
Read complete instructions prior to
installation and operation of the unit.

D
238 www.redlion.net
IEC-61010-1, EN 61010-1: Safety requirements for electrical equipment
for measurement, control, and laboratory use, Part 1.
IP65 Enclosure rating (Face only), IEC 529
ELECTROMAGNETIC COMPATIBILITY
Notes
1. Backlit powered units require a power line filter to be installed, RLC
LFIL0000 or equivalent, so as not to impair the function of the
backlighting.
Refer to EMC Installation Guidelines for additional information.
11. CONSTRUCTION: High impact plastic case with clear viewing window.
The front panel meets NEMA 4X/IP65 requirements for indoor use when
properly installed. Installation Category I, Pollution Degree 2. Panel gasket
and mounting clip included.
12. WEIGHT: 2 oz. (57 grams) [with battery]
TIMER RANGE SELECTION
The CUB7T’s timer range can be modified in the Program mode. The
Program mode uses the PGM button (refer to photo) to switch between
Program and Operate modes. The RESET button (refer to photo) is used to
select the desired timer range.
Note: Timer range and accumulated time on the display will be lost if the
battery is removed from the unit
Connect wires between RST EN (Reset Enable) and COM. (Common); and
between HS (Program Enable) and COM. (Common) to enable front push
buttons. Press the PGM button to enter Program Mode, allowing selection of
the desired timer range. The display will show 00000.000 (Timer Range 0.001
sec). Repeatedly pressing the RST button will cycle through the available timer
ranges as shown in the table. When the desired timer range is displayed, press
PGM to load the range and return
to operating mode. (The CUB7T
will remain in Program Mode
until the PGM button is pressed.)
Remove the wire from the HS
(Program Enable) terminal to
prevent accidental changes to the
timer range. Any new time
accumulated will be at the new
rate selected.
Note: To avoid incorrect display
information, it is
recommended that the CUB7T
be reset after making
programming changes.
Timer Range
00000.000 0.001 Sec
111111.11 0.01 Sec
2222222.2 0.1 Sec
33333333 1 Sec
4444444.4 0.1 Min
55555555 1 Min
666666.66 0.01 Hr
7777777.7 0.1 Hr
88888888 1 Hr
9999.99.99 Factory Use Only
INSTALLATION
The CUB7T meets NEMA 4X/IP65 requirements for indoor use when
properly installed. The units are intended to be mounted into an enclosed
panel. The viewing window and reset button are factory sealed for a
washdown environment. A sponge rubber gasket and mounting clip are
provided for installing the unit in the panel cut-out.
Installation Environment
The unit should be installed in a location that does not exceed the
maximum operating temperature and provides good air circulation. Placing
the unit near devices that generate excessive heat should be avoided.
The bezel should be cleaned only with a soft cloth and neutral soap
product. Do NOT use solvents.
Continuous exposure to direct sunlight may accelerate the aging process of
the bezel.
Do not use tools of any kind (screwdrivers, pens, pencils, etc.) to operate
the push buttons of the unit.
The following procedure assures proper installation:
1. Cut panel opening to specified dimensions. Remove burrs and clean
around panel opening.
2. Carefully remove and discard the center section of the gasket.
3. Slide the panel gasket over the rear of the counter body to the back of the
bezel. Install CUB7T unit through the panel cut-out.
4. Insert the mounting screws onto both sides of mounting clip. Tip of screw
should NOT project from hole in mounting clip.
5. Slide the mounting clip over the rear of the unit until the clip is against the
back of the panel. The mounting clip has latching features which engage
into mating features on the CUB7T housing.
6. Note: It is necessary to hold the unit in place when sliding mounting clip
into position.
7. Alternately tighten each screw to ensure uniform gasket pressure.
Visually inspect the front panel gasket. The gasket should be compressed
to about 75 to 80% of its original thickness. If not, gradually turn mounting
screws to further compress gasket.
8. If the gasket is not adequately compressed and the mounting screws can no
longer be turned, loosen mounting screws, and check that the mounting
clip is latched as close as possible to the panel.
9. Repeat from step #5 for tightening mounting screws.
900 MHz ± 5 MHz
Immunity to EN 50082-2
200 Hz, 50% duty cycle
Electrostatic discharge EN 61000-4-2 Level 2; 4 Kv contact
Level 3; 8 Kv air
Electromagnetic RF fields EN 61000-4-3 Level 3; 10 V/m
80 MHz - 1 GHz
Fast transients (burst) EN 61000-4-4 Level 4; 2 Kv I/O
Level 3; 2 Kv power 1
RF conducted interference EN 61000-4-6 Level 3; 10 V/rms
150 KHz - 80 MHz
Simulation of cordless telephone ENV 50204 Level 3; 10 V/m
Emissions to EN 50081-1
RF interference EN 55022 Enclosure class B
DISPLAY DURING
PROGRAMMING
TROUBLESHOOTING
For further technical assistance, contact technical support at the appropriate
company numbers listed.

D
2391-717-767-6511
EMC INSTALLATION GUIDELINES
Although this unit is designed with a high degree of immunity to
ElectroMagnetic Interference (EMI), proper installation and wiring methods
must be followed to ensure compatibility in each application. The type of the
electrical noise, source or coupling method into the unit may be different for
various installations. In extremely high EMI environments, additional measures
may be needed. The unit becomes more immune to EMI with fewer I/O
connections. Cable length, routing and shield termination are very important and
can mean the difference between a successful or a troublesome installation.
Listed below are some EMC guidelines for successful installation in an
industrial environment.
1. Use shielded (screened) cables for all Signal and Control inputs. The shield
(screen) pigtail connection should be made as short as possible. The
connection point for the shield depends somewhat upon the application.
Listed below are the recommended methods of connecting the shield, in order
of their effectiveness.
a. Connect the shield only at the panel where the unit is mounted to earth
ground (protective earth).
b. Connect the shield to earth ground at both ends of the cable, usually when
the noise source frequency is above 1 MHz.
c. Connect the shield to common of the unit and leave the other end of the
shield unconnected and insulated from earth ground.
2. Never run Signal or Control cables in the same conduit or raceway with AC
power lines, conductors feeding motors, solenoids, SCR controls, and
heaters, etc. The cables should be run in metal conduit that is properly
grounded. This is especially useful in applications where cable runs are long
and portable two-way radios are used in close proximity or if the installation
is near a commercial radio transmitter.
3. Signal or Control cables within an enclosure should be routed as far away as
possible from contactors, control relays, transformers, and other noisy
components.
4. In extremely high EMI environments, the use of external EMI suppression
devices, such as ferrite suppression cores, is effective. Install them on Signal
and Control cables as close to the unit as possible. Loop the cable through the
core several times or use multiple cores on each cable for additional
protection. Install line filters on the power input cable to the unit to suppress
power line interference. Install them near the power entry point of the
enclosure. The following EMI suppression devices (or equivalent) are
recommended:
Ferrite Suppression Cores for signal and control cables:
Fair-Rite # 0443167251 (RLC #FCOR0000)
TDK # ZCAT3035-1330A
Steward #28B2029-0A0
Line Filters for input power cables:
Schaffner # FN610-1/07 (RLC #LFIL0000)
Schaffner # FN670-1.8/07
Corcom #1VR3
Note: Reference manufacturer’s instructions when installing a line filter.
5. Long cable runs are more susceptible to EMI pickup than short cable runs.
Therefore, keep cable runs as short as possible.
WIRING CONNECTIONS
The electrical connections are made via screw-clamp terminals located on the
back of the unit. All conductors should meet voltage and current ratings for each
terminal. Also, cabling should conform to appropriate standards of good
installation, local codes and regulations. It is recommended that power supplied
to the unit be protected by a fuse or circuit breaker. When wiring the unit, use
the battery cover to identify the wire position with the proper function. Strip the
wire, leaving approximately 1/4" bare wire exposed (stranded wires should be
tinned with solder). Insert the wire under the screw-clamp and tighten down the
screw until the wire is clamped in tightly. Each terminal can accept up to two
#14 AWG wires.
WARNING: Lithium battery may explode if incinerated.
BATTERY INSTALLATION
1. Remove all power to the unit before removing battery cover.
2. To remove the battery cover, push upward in the direction of the arrow on
the rear cover (See drawing at right), until the cover unlatches. Pull the
cover straight out from unit to fully remove.
3. Remove old battery* and replace it with an RLC battery (BNL10000).
Observe proper polarity when replacing the battery as shown in the drawing.
4. Replace the cover. The battery cover is keyed so that it cannot be placed
upside down. The arrow on the rear of the cover should point toward the top
of the CUB7T when properly installed.
* - Dispose of properly.
WARNING: Lithium battery may explode if incinerated.
L.S. INPUT; CONTACT VERSIONS
Connecting the “L.S.” Input to Common with a mechanical or solid-state
switch activates the timer. Releasing the connection, deactivates the timer. The
switch load is 15 μA (max. voltage drop 0.5 V) when ON. The OFF-state
leakage current must be less than 2 μA.
Reed switches, mercury wetted contacts, snap action limit switches, and
silver alloy relay contacts with wiping action are usually satisfactory for input
activation. Motor starter contacts, tungsten contacts, and brush-type contacts
should not be used.

D
240 www.redlion.net
RESET AND PROGRAM OPTIONS
Connecting a wire from the RST EN (Reset Enable) or the HS (Program
Enable) Input terminals to Common will enable the front panel Reset or
Program buttons respectively.
Pulling the “RST.” input low causes the timer to reset. The “RST.” can be
pulled low by either a mechanical switch or solid-state transistor switch. The
Switch load is 15 μA (max. voltage drop 0.5 V) when ON. The OFF-state
leakage current must be less than 2 μA.
Note: The RC protection circuit on the “RST.” Input causes a delay of
approximately 15 msec in Reset response.
MODEL NO. DESCRIPTION
*CUB7T
Timer; Positive Image Reflective CUB7T000
Timer, w/Yel-Grn Backlighting CUB7T010
Timer; w/Red Backlighting CUB7T020
BNL Replacement 3 V Lithium Battery BNL10000
PART NUMBER
CONTACT
INPUT
ORDERING INFORMATION
APPLICATION
A bottling company has a preventive maintenance program based
on the accumulative running hours. For each bottling line, they added
a CUB7T000. When the line is running a contact closure is given to the
CUB7T timer allowing the new time to accumulate with the hours of
previous operations. At a designated value, the line maintenance is
performed and the CUB7T is reset with a key switch to 0.
BACKLIGHT OPTION
Optional backlight versions of the CUB7T require an external 9 to 26
VDC power supply. The external supply is connected between the V+ and
common terminals as shown in the drawing.
*Battery is included with unit.

D
2411-717-767-6511
O
9 PROGRAMMABLE TIMER RANGES
O
3 (8 Digit 0.35") LCD DISPLAY OPTIONS (Reflective, Red
Transmissive, Yellow/Green Transmissive) with “Timer Active”
annunciator
O
REPLACEABLE INTERNAL LITHIUM BATTERY (provides up to 6
years of uninterrupted operation)
O
BOTH FRONT PANEL PROGRAM AND RESET BUTTONS ARE
INDIVIDUALLY ENABLED
O
WIRE CONNECTIONS VIA SCREW CLAMP TYPE TERMINALS
O
FRONT PANEL AND REMOTE RESET INPUT
O
NEMA 4X/IP65 SEALED FRONT BEZEL
DESCRIPTION
The CUB7T1 is an 8-digit miniature programmable timer with large 0.35
inch (8.90 mm) high digits. It has an LCD read-out available in Positive Image
Reflective (CUB7T100), Negative Image Transmissive with yellow/green
backlighting (CUB7T110) or red backlighting (CUB7T120). The backlight
versions require an external 9 to 28 VDC power supply. The display will wrap
around from a full display of “99999999” to “00000000” when an overflow
occurs. An annunciator, located in the upper left hand corner of the display,
blinks at 2 Hz when the signal input is activated. The CUB7T1 operates from
a signal voltage of 10 to 300 V (AC 50/60 Hz or DC).
The CUB7T timers use a CMOS LSI chip, mounted on a gold-plated
substrate, that is electrically connected by ultrasonic wire-bonding. Proven
micro-electronic assembly and manufacturing techniques provide these units
with the reliability and dependability required for industrial service.
The CUB7T series is housed in a lightweight, high impact plastic case with
a clear viewing window. The sealed front panel with the silicone rubber
buttons meets NEMA 4X/IP65 specifications for wash-down and/or dusty
environments, when properly installed.
SAFETY SUMMARY
All safety related regulations, local codes and instructions that appear in the
bulletin or on equipment must be observed to ensure personal safety and to
prevent damage to either the instrument or equipment connected to it. If
equipment is used in a manner not specified by the manufacturer, the protection
provided by the equipment may be impaired.
SPECIFICATIONS
1. DISPLAY: 8-digit LCD, 0.35" (8.90 mm) high digits.
2. POWER SOURCE: Replaceable Internal 3.0 V lithium battery to provide up
to 6 years of continuous operation. (Battery life is dependent upon usage.
Contacts that remain closed for long periods of time reduce battery life.)
3. BACKLIGHT POWER REQUIREMENTS: 9 to 28 VDC; 35 mA. typical,
50 mA max. Above 26 VDC, derate max. operating temperature to 40°C.
4. ANNUNCIATOR: Annunciator in the upper left corner of the display flashes
at a 2 Hz rate when the signal input is activated.
5. SIGNAL INPUT: (LS terminal #4)
Voltage Input (CUB7T1xx): 10 V min. to 300 V max. (AC 50/60 Hz. or DC)
to Common. 150 V max. for backlight versions. Input current 0.5 mA max.
ANY off-state leakage current may activate the timer. Constant voltage
applied to the input will actuate the timer. Due to the internal digital
filtering to this input, up to 30 msec of error may be added per activation
of the signal input.
6. REMOTE RESET: 15 msec min. pulse width (active low) from 3.0 V
bipolar output, an open collector transistor, or a switch contact to common.
7. ACCURACY: 0.025% (+ up to 30 msec per activation of signal input—
CUB7T1xx only)
8. ENVIRONMENTAL CONDITIONS:
Operating Temperature Range: 0 to 50°C Derate max. operating
temperature to 40°C above 26 VDC (Backlight versions).
Storage Temperature: -30 to 80°C
Operating and Storage Humidity: 85% max. relative humidity (non-
condensing) from 0°C to 50°C.
Vibration According to IEC 68-2-6: Operational 5 to 500 Hz, in X, Y, Z
direction for 1.5 hours, 5 g’s.
Shock According to IEC 68-2-27: Operational 30 g, 11 msec in 3 directions.
Altitude: Up to 2000 meters
9. CERTIFICATIONS AND COMPLIANCES:
SAFETY
IEC 61010-1, EN 61010-1: Safety requirements for electrical equipment
for measurement, control, and laboratory use, Part 1.
IP65 Enclosure rating (Face only), IEC 529
Type 4X Enclosure rating (Face only).
MODEL CUB7T1 PROGRAMMABLE GENERAL PURPOSE ELECTRONIC TIMER
DIMENSIONS In inches (mm) Note: Recommended minimum clearance (behind the panel) for mounting clip installation is
2.1" (53.4) H x 5.5" (140) W.
CAUTION: Risk of Danger.
Read complete instructions prior to
installation and operation of the unit.
CAUTION: Risk of electric shock.
PANEL CUT-OUT

D
242 www.redlion.net
ELECTROMAGNETIC COMPATIBILITY
Notes
1. Backlit powered units require a power line filter to be installed, RLC
LFIL0000 or equivalent, so as not to impair the function of the
backlighting.
Refer to EMC Installation Guidelines for additional information.
9. CONNECTIONS: Wire clamping screw terminals.
Wire Strip Length: 0.3" (7.5 mm)
Wire Gage: 30-14 AWG copper wire
Torque: 5 inch-lbs (0.565 N-m) max
10. CONSTRUCTION: High impact plastic case with clear viewing window.
The front panel meets NEMA 4X/IP65 requirements for indoor use when
properly installed. Installation Category I, Pollution Degree 2. Panel gasket
and mounting clip included.
11. WEIGHT: 2 oz. (57 grams) [with battery]
TIMER RANGE SELECTION
The CUB7T’s timer range can be modified in the Program mode. The
Program mode uses the PGM button (refer to photo) to switch between Program
and Operate modes. The RESET button (refer to photo) is used to select the
desired timer range.
Note: Timer range and accumulated time on the display will be lost if the
battery is removed from the unit
Connect wires between RST EN (Reset Enable) and COM. (Common); and
between HS (Program Enable) and COM. (Common) to enable front push
buttons. Press the PGM button to enter Program Mode, allowing selection of
the desired timer range. The display will show 00000.000 (Timer Range 0.001
sec). Repeatedly pressing the RST button will cycle through the available timer
ranges as shown in the table. When the desired timer range is displayed, press
PGM to load the range and return to
operating mode. (The CUB7T will
remain in Program Mode until the
PGM button is pressed.) Remove the
wire from the HS (Program Enable)
terminal to prevent accidental
changes to the timer range. Any new
time accumulated will be at the new
rate selected.
Note: To avoid incorrect display
information, it is recommended
that the CUB7T be reset after
making programming changes.
INSTALLATION
The CUB7T meets NEMA 4X/IP65 requirements for indoor use when
properly installed. The units are intended to be mounted into an enclosed
panel. The viewing window and reset button are factory sealed for a
washdown environment. A sponge rubber gasket and mounting clip are
provided for installing the unit in the panel cut-out.
Installation Environment
The unit should be installed in a location that does not exceed the
maximum operating temperature and provides good air circulation. Placing
the unit near devices that generate excessive heat should be avoided.
The bezel should be cleaned only with a soft cloth and neutral soap
product. Do NOT use solvents.
Continuous exposure to direct sunlight may accelerate the aging process of
the bezel.
Do not use tools of any kind (screwdrivers, pens, pencils, etc.) to operate
the push buttons of the unit.
The following procedure assures proper installation:
1. Cut panel opening to specified dimensions. Remove burrs and clean
around panel opening.
2. Carefully remove and discard the center section of the gasket.
3. Slide the panel gasket over the rear of the counter body to the back of the
bezel. Install CUB7T unit through the panel cut-out.
4. Insert the mounting screws onto both sides of mounting clip. Tip of screw
should NOT project from hole in mounting clip.
5. Slide the mounting clip over the rear of the unit until the clip is against the
back of the panel. The mounting clip has latching features which engage
into mating features on the CUB7T housing.
6. Note: It is necessary to hold the unit in place when sliding mounting clip
into position.
7. Alternately tighten each screw to ensure uniform gasket pressure.
Visually inspect the front panel gasket. The gasket should be compressed
to about 75 to 80% of its original thickness. If not, gradually turn mounting
screws to further compress gasket.
8. If the gasket is not adequately compressed and the mounting screws can no
longer be turned, loosen mounting screws, and check that the mounting
clip is latched as close as possible to the panel.
9. Repeat from step #5 for tightening mounting screws.
900 MHz ± 5 MHz
Immunity to EN 50082-2
200 Hz, 50% duty cycle
Electrostatic discharge EN 61000-4-2 Level 2; 4 Kv contact
Level 3; 8 Kv air
Electromagnetic RF fields EN 61000-4-3 Level 3; 10 V/m
80 MHz - 1 GHz
Fast transients (burst) EN 61000-4-4 Level 4; 2 Kv I/O
Level 3; 2 Kv power 1
RF conducted interference EN 61000-4-6 Level 3; 10 V/rms
150 KHz - 80 MHz
Simulation of cordless telephone ENV 50204 Level 3; 10 V/m
Emissions to EN 50081-1
RF interference EN 55022 Enclosure class B
DISPLAY DURING
PROGRAMMING
Factory Use Only9999.99.99
1 Hr88888888
0.1 Hr7777777.7
0.01 Hr666666.66
1 Min55555555
0.1 Min4444444.4
1 Sec33333333
0.1 Sec2222222.2
0.01 Sec111111.11
0.001 Sec00000.000
Timer Range

D
2431-717-767-6511
EMC INSTALLATION GUIDELINES
Although this unit is designed with a high degree of immunity to
ElectroMagnetic Interference (EMI), proper installation and wiring methods
must be followed to ensure compatibility in each application. The type of the
electrical noise, source or coupling method into the unit may be different for
various installations. In extremely high EMI environments, additional measures
may be needed. The unit becomes more immune to EMI with fewer I/O
connections. Cable length, routing and shield termination are very important
and can mean the difference between a successful or a troublesome installation.
Listed below are some EMC guidelines for successful installation in an
industrial environment.
1. Use shielded (screened) cables for all Signal and Control inputs. The shield
(screen) pigtail connection should be made as short as possible. The
connection point for the shield depends somewhat upon the application.
Listed below are the recommended methods of connecting the shield, in order
of their effectiveness.
a. Connect the shield only at the panel where the unit is mounted to earth
ground (protective earth).
b. Connect the shield to earth ground at both ends of the cable, usually when
the noise source frequency is above 1 MHz.
c. Connect the shield to common of the unit and leave the other end of the
shield unconnected and insulated from earth ground.
2. Never run Signal or Control cables in the same conduit or raceway with AC
power lines, conductors feeding motors, solenoids, SCR controls, and
heaters, etc. The cables should be run in metal conduit that is properly
grounded. This is especially useful in applications where cable runs are long
and portable two-way radios are used in close proximity or if the installation
is near a commercial radio transmitter.
3. Signal or Control cables within an enclosure should be routed as far away as
possible from contactors, control relays, transformers, and other noisy
components.
4. In extremely high EMI environments, the use of external EMI suppression
devices, such as ferrite suppression cores, is effective. Install them on Signal
and Control cables as close to the unit as possible. Loop the cable through the
core several times or use multiple cores on each cable for additional
protection. Install line filters on the power input cable to the unit to suppress
power line interference. Install them near the power entry point of the
enclosure. The following EMI suppression devices (or equivalent) are
recommended:
Ferrite Suppression Cores for signal and control cables:
Fair-Rite # 0443167251 (RLC #FCOR0000)
TDK # ZCAT3035-1330A
Steward #28B2029-0A0
Line Filters for input power cables:
Schaffner # FN610-1/07 (RLC #LFIL0000)
Schaffner # FN670-1.8/07
Corcom #1VR3
Note: Reference manufacturer’s instructions when installing a line filter.
5. Long cable runs are more susceptible to EMI pickup than short cable runs.
Therefore, keep cable runs as short as possible.
WIRING CONNECTIONS
The electrical connections are made via screw-clamp terminals located on the
back of the unit. All conductors should meet voltage and current ratings for each
terminal. Also, cabling should conform to appropriate standards of good
installation, local codes and regulations. It is recommended that power supplied
to the unit be protected by a fuse or circuit breaker. When wiring the unit, use
the battery cover to identify the wire position with the proper function. Strip the
wire, leaving approximately 1/4" bare wire exposed (stranded wires should be
tinned with solder). Insert the wire under the screw-clamp and tighten down the
screw until the wire is clamped in tightly. Each terminal can accept up to two
#14 AWG wires.
WARNING: Lithium battery may explode if incinerated.
CAUTION: All leads will be at the same line potential as the input
leads.
BATTERY INSTALLATION
1. Remove all power to the unit before removing battery cover.
2. To remove the battery cover, push upward in the direction of the arrow on
the rear cover (See drawing at right), until the cover unlatches. Pull the
cover straight out from unit to fully remove.
3. Remove old battery* and replace it with an RLC battery (BNL10000).
Observe proper polarity when replacing the battery as shown in the drawing.
4. Replace the cover. The battery cover is keyed so that it cannot be placed
upside down. The arrow on the rear of the cover should point toward the top
of the CUB7T when properly installed.
* - Dispose of properly.
WARNING: Lithium battery may explode if incinerated.

D
244 www.redlion.net
TROUBLESHOOTING
For further technical assistance, contact technical support at the
appropriate company numbers listed.
L.S. INPUT; VOLTAGE VERSIONS
The CUB7T accepts most machine control voltage signals. The input accepts
AC (50/60 Hz) or DC control voltages from 10 to 300 V. The unit times when
voltage is applied between the LS input and Common. Any off-state leakage
current may activate the timer.
RESET AND PROGRAM OPTIONS
Connecting a wire from the RST EN (Reset Enable) or the HS (Program
Enable) Input terminals to Common will enable the front panel Reset or
Program buttons respectively.
Pulling the “RST.” input low causes the timer to reset. The “RST.” can be
pulled low by either a mechanical switch or solid-state transistor switch. The
Switch load is 15 μA (max. voltage drop 0.5 V) when ON. The OFF-state
leakage current must be less than 2 μA.
Note: The RC protection circuit on the “RST.” Input causes a delay of
approximately 15 msec in Reset response.
WARNING: Any lead may be at hazardous live input potential.
External wiring and devices connected to the unit must be rated
the same as applied signal input voltage and be properly
isolated from Class 2 or SELV circuitry.
MODEL NO. DESCRIPTION
*CUB7T VOLTAGE
INPUT
Timer; Positive Image Reflective CUB7T100
Timer, w/Yel-Grn Backlighting CUB7T110
BNL Replacement 3 V Lithium Battery
Timer; w/Red Backlighting
BNL10000
CUB7T120
PART
NUMBER
ORDERING INFORMATION
APPLICATION
A laundromat owner wants to monitor the cost of operating his dryers.
He needs to know how many hours each dryer has operated. A CUB7T100
(Voltage Input; Positive Image Reflective) is mounted on the back panel of
each dryer. The signal input is connected across the motor of the dryer. The
CUB7T will accumulate time while the dryer is running. On a regular basis
the owner records the cumulative
operating hours for each
dryer and calculates if
he needs to make any
necessary adjustments. The
timer can be reset via key
switch.
BACKLIGHT OPTION
Optional backlight versions of the CUB7T require an external 9 to 26 VDC
power supply. The external supply is connected between the V+ and common
terminals as shown in the drawing.
WARNING: When connecting the wiring for a backlit CUB7T
measuring an AC input voltage, the neutral of the single phase
AC signal is connected to Terminal 1 (COM), and line (hot) is
connected to Terminal 4 (LS). The DC supply for the
backlighting is connected as shown in the drawing. Three phase
AC applications require an isolation transformer.
*Battery is included with unit.

D
2451-717-767-6511
O
9 PROGRAMMABLE TIMER RANGES
O
3 (8 Digit 0.35") LCD DISPLAY OPTIONS (Reflective, Red
Transmissive, Yellow/Green Transmissive) with “Timer Active”
annunciator
O
REPLACEABLE INTERNAL LITHIUM BATTERY (provides up to 6
years of uninterrupted operation)
O
BOTH FRONT PANEL PROGRAM AND RESET BUTTONS ARE
INDIVIDUALLY ENABLED
O
WIRE CONNECTIONS VIA SCREW CLAMP TYPE TERMINALS
O
FRONT PANEL AND REMOTE RESET INPUT
O
NEMA 4X/IP65 SEALED FRONT BEZEL
DESCRIPTION
The CUB7T3 is an 8-digit miniature programmable timer with large 0.35
inch (8.90 mm) high digits. It has an LCD read-out available in Positive Image
Reflective (CUB7T300), Negative Image Transmissive with yellow/green
backlighting (CUB7T310) or red backlighting (CUB7T320). The backlight
versions require an external 9 to 28 VDC power supply. The display will wrap
around from a full display of “99999999” to “00000000” when an overflow
occurs. An annunciator, located in the upper left hand corner of the display,
blinks at 2 Hz when the signal input is activated. The CUB7T3 operates from
a signal voltage of 10 to 30 V (AC 50/60 Hz or DC).
The CUB7T timers use a CMOS LSI chip, mounted on a gold-plated
substrate, that is electrically connected by ultrasonic wire-bonding. Proven
micro-electronic assembly and manufacturing techniques provide these units
with the reliability and dependability required for industrial service.
The CUB7T series is housed in a lightweight, high impact plastic case with
a clear viewing window. The sealed front panel with the silicone rubber
buttons meets NEMA 4X/IP65 specifications for wash-down and/or dusty
environments, when properly installed.
SAFETY SUMMARY
All safety related regulations, local codes and instructions that appear in the
bulletin or on equipment must be observed to ensure personal safety and to
prevent damage to either the instrument or equipment connected to it. If
equipment is used in a manner not specified by the manufacturer, the protection
provided by the equipment may be impaired.
SPECIFICATIONS
1. DISPLAY: 8-digit LCD, 0.35" (8.90 mm) high digits.
2. POWER SOURCE: Replaceable Internal 3.0 V lithium battery to provide up
to 6 years of continuous operation. (Battery life is dependent upon usage.
Contacts that remain closed for long periods of time reduce battery life.)
3. BACKLIGHT POWER REQUIREMENTS: 9 to 28 VDC; 35 mA. typical,
50 mA max. Above 26 VDC, derate max. operating temperature to 40°C.
Must use a NEC Class 2 or SELV rated power supply.
4. ANNUNCIATOR: Annunciator in the upper left corner of the display flashes
at a 2 Hz rate when the signal input is activated.
5. SIGNAL INPUT: (LS terminal #4)
Voltage Input: 10 V min. to 30 V max. (AC 50/60 Hz. or DC) to Common.
ANY off-state leakage current may activate the timer. Constant voltage
applied to the input will actuate the timer. Due to the internal digital
filtering to this input, up to 30 msec of error may be added per activation
of the signal input. Must use a NEC or a Class 2 or SELV rated power
supply.
6. REMOTE RESET: 15 msec min. pulse width (active low) from 3.0 V
bipolar output, an open collector transistor, or a switch contact to common.
7. ACCURACY: 0.025%
8. ENVIRONMENTAL CONDITIONS:
Operating Temperature Range: 0 to 50°C Derate max. operating
temperature to 40°C above 26 VDC (Backlight versions).
Storage Temperature: -30 to 80°C
Operating and Storage Humidity: 85% max. relative humidity (non-
condensing) from 0°C to 50°C.
Vibration According to IEC 68-2-6: Operational 5 to 500 Hz, in X, Y, Z
direction for 1.5 hours, 5 g’s.
Shock According to IEC 68-2-27: Operational 30 g, 11 msec in 3 directions.
Altitude: Up to 2000 meters
9. CERTIFICATIONS AND COMPLIANCES:
SAFETY
UL Listed, File # E137808, UL508, CSA C22.2 No. 14-M95
LISTED by Und. Lab. Inc. to U.S. and Canadian safety standards
Type 4X Indoor Enclosure rating (Face only), UL50
MODEL CUB7T3 PROGRAMMABLE GENERAL PURPOSE ELECTRONIC TIMER
DIMENSIONS In inches (mm) Note: Recommended minimum clearance (behind the panel) for mounting clip installation is
2.1" (53.4) H x 5.5" (140) W.
PANEL CUT-OUT
CAUTION: Risk of Danger.
Read complete instructions prior to
installation and operation of the unit.
C
C
US LISTED
US LISTED
UL
R
IND. CONT. EQ.
51EB

D
246 www.redlion.net
IEC 61010-1, EN 61010-1: Safety requirements for electrical equipment
for measurement, control, and laboratory use, Part 1.
IP65 Enclosure rating (Face only), IEC 529
ELECTROMAGNETIC COMPATIBILITY
Notes
1. Backlit powered units require a power line filter to be installed, RLC
LFIL0000 or equivalent, so as not to impair the function of the
backlighting.
Refer to EMC Installation Guidelines for additional information.
9. CONNECTIONS: Wire clamping screw terminals.
Wire Strip Length: 0.3" (7.5 mm)
Wire Gage: 30-14 AWG copper wire
Torque: 5 inch-lbs (0.565 N-m) max
10. CONSTRUCTION: High impact plastic case with clear viewing window.
The front panel meets NEMA 4X/IP65 requirements for indoor use when
properly installed. Installation Category I, Pollution Degree 2. Panel gasket
and mounting clip included.
11. WEIGHT: 2 oz. (57 grams) [with battery]
TIMER RANGE SELECTION
The CUB7T’s timer range can be modified in the Program mode. The
Program mode uses the PGM button (refer to photo) to switch between Program
and Operate modes. The RESET button (refer to photo) is used to select the
desired timer range.
Note: Timer range and accumulated time on the display will be lost if the
battery is removed from the unit
Connect wires between RST EN (Reset Enable) and COM. (Common); and
between HS (Program Enable) and COM. (Common) to enable front push
buttons. Press the PGM button to enter Program Mode, allowing selection of
the desired timer range. The display will show 00000.000 (Timer Range 0.001
sec). Repeatedly pressing the RST button will cycle through the available timer
ranges as shown in the table. When
the desired timer range is
displayed, press PGM to load the
range and return to operating
mode. (The CUB7T will remain in
Program Mode until the PGM
button is pressed.) Remove the
wire from the HS (Program
Enable) terminal to prevent
accidental changes to the timer
range. Any new time accumulated
will be at the new rate selected.
Note: To avoid incorrect display
information, it is recommended
that the CUB7T be reset after
making programming changes
INSTALLATION
The CUB7T meets NEMA 4X/IP65 requirements for indoor use when
properly installed. The units are intended to be mounted into an enclosed
panel. The viewing window and reset button are factory sealed for a
washdown environment. A sponge rubber gasket and mounting clip are
provided for installing the unit in the panel cut-out.
Installation Environment
The unit should be installed in a location that does not exceed the
maximum operating temperature and provides good air circulation. Placing
the unit near devices that generate excessive heat should be avoided.
The bezel should be cleaned only with a soft cloth and neutral soap
product. Do NOT use solvents.
Continuous exposure to direct sunlight may accelerate the aging process of
the bezel.
Do not use tools of any kind (screwdrivers, pens, pencils, etc.) to operate
the push buttons of the unit.
The following procedure assures proper installation:
1. Cut panel opening to specified dimensions. Remove burrs and clean
around panel opening.
2. Carefully remove and discard the center section of the gasket.
3. Slide the panel gasket over the rear of the counter body to the back of the
bezel. Install CUB7T unit through the panel cut-out.
4. Insert the mounting screws onto both sides of mounting clip. Tip of screw
should NOT project from hole in mounting clip.
5. Slide the mounting clip over the rear of the unit until the clip is against the
back of the panel. The mounting clip has latching features which engage
into mating features on the CUB7T housing.
6. Note: It is necessary to hold the unit in place when sliding mounting clip
into position.
7. Alternately tighten each screw to ensure uniform gasket pressure.
Visually inspect the front panel gasket. The gasket should be compressed
to about 75 to 80% of its original thickness. If not, gradually turn mounting
screws to further compress gasket.
8. If the gasket is not adequately compressed and the mounting screws can no
longer be turned, loosen mounting screws, and check that the mounting
clip is latched as close as possible to the panel.
9. Repeat from step #5 for tightening mounting screws.
900 MHz ± 5 MHz
Immunity to EN 50082-2
200 Hz, 50% duty cycle
Electrostatic discharge EN 61000-4-2 Level 2; 4 Kv contact
Level 3; 8 Kv air
Electromagnetic RF fields EN 61000-4-3 Level 3; 10 V/m
80 MHz - 1 GHz
Fast transients (burst) EN 61000-4-4 Level 4; 2 Kv I/O
Level 3; 2 Kv power 1
RF conducted interference EN 61000-4-6 Level 3; 10 V/rms
150 KHz - 80 MHz
Simulation of cordless telephone ENV 50204 Level 3; 10 V/m
Emissions to EN 50081-1
RF interference EN 55022 Enclosure class B
DISPLAY DURING
PROGRAMMING
Factory Use Only9999.99.99
1 Hr88888888
0.1 Hr7777777.7
0.01 Hr666666.66
1 Min55555555
0.1 Min4444444.4
1 Sec33333333
0.1 Sec2222222.2
0.01 Sec111111.11
0.001 Sec00000.000
Timer Range

D
2471-717-767-6511
.
EMC INSTALLATION GUIDELINES
Although this unit is designed with a high degree of immunity to
ElectroMagnetic Interference (EMI), proper installation and wiring methods
must be followed to ensure compatibility in each application. The type of the
electrical noise, source or coupling method into the unit may be different for
various installations. In extremely high EMI environments, additional measures
may be needed. The unit becomes more immune to EMI with fewer I/O
connections. Cable length, routing and shield termination are very important
and can mean the difference between a successful or a troublesome installation.
Listed below are some EMC guidelines for successful installation in an
industrial environment.
1. Use shielded (screened) cables for all Signal and Control inputs. The shield
(screen) pigtail connection should be made as short as possible. The
connection point for the shield depends somewhat upon the application.
Listed below are the recommended methods of connecting the shield, in order
of their effectiveness.
a. Connect the shield only at the panel where the unit is mounted to earth
ground (protective earth).
b. Connect the shield to earth ground at both ends of the cable, usually when
the noise source frequency is above 1 MHz.
c. Connect the shield to common of the unit and leave the other end of the
shield unconnected and insulated from earth ground.
2. Never run Signal or Control cables in the same conduit or raceway with AC
power lines, conductors feeding motors, solenoids, SCR controls, and
heaters, etc. The cables should be run in metal conduit that is properly
grounded. This is especially useful in applications where cable runs are long
and portable two-way radios are used in close proximity or if the installation
is near a commercial radio transmitter.
3. Signal or Control cables within an enclosure should be routed as far away as
possible from contactors, control relays, transformers, and other noisy
components.
4. In extremely high EMI environments, the use of external EMI suppression
devices, such as ferrite suppression cores, is effective. Install them on Signal
and Control cables as close to the unit as possible. Loop the cable through the
core several times or use multiple cores on each cable for additional
protection. Install line filters on the power input cable to the unit to suppress
power line interference. Install them near the power entry point of the
enclosure. The following EMI suppression devices (or equivalent) are
recommended:
Ferrite Suppression Cores for signal and control cables:
Fair-Rite # 0443167251 (RLC #FCOR0000)
TDK # ZCAT3035-1330A
Steward #28B2029-0A0
Line Filters for input power cables:
Schaffner # FN610-1/07 (RLC #LFIL0000)
Schaffner # FN670-1.8/07
Corcom #1VR3
Note: Reference manufacturer’s instructions when installing a line filter.
5. Long cable runs are more susceptible to EMI pickup than short cable runs.
Therefore, keep cable runs as short as possible.
WIRING CONNECTIONS
The electrical connections are made via screw-clamp terminals located on the
back of the unit. All conductors should meet voltage and current ratings for each
terminal. Also, cabling should conform to appropriate standards of good
installation, local codes and regulations. It is recommended that power supplied
to the unit be protected by a fuse or circuit breaker. When wiring the unit, use
the battery cover to identify the wire position with the proper function. Strip the
wire, leaving approximately 1/4" bare wire exposed (stranded wires should be
tinned with solder). Insert the wire under the screw-clamp and tighten down the
screw until the wire is clamped in tightly. Each terminal can accept up to two
#14 AWG wires.
WARNING: Lithium battery may explode if incinerated.
BATTERY INSTALLATION
1. Remove all power to the unit before removing battery cover.
2. To remove the battery cover, push upward in the direction of the arrow on
the rear cover (See drawing at right), until the cover unlatches. Pull the
cover straight out from unit to fully remove.
3. Remove old battery* and replace it with an RLC battery (BNL10000).
Observe proper polarity when replacing the battery as shown in the drawing.
4. Replace the cover. The battery cover is keyed so that it cannot be placed
upside down. The arrow on the rear of the cover should point toward the top
of the CUB7T when properly installed.
* - Dispose of properly.
WARNING: Lithium battery may explode if incinerated.

D
248 www.redlion.net
TROUBLESHOOTING
For further technical assistance, contact technical support at the
appropriate company numbers listed.
L.S. INPUT; VOLTAGE VERSIONS
The CUB7T3 accepts most machine control voltage signals. The input
accepts AC (50/60 Hz) or DC control voltages from 10 to 30 V. The unit times
when voltage is applied between the LS input and Common. Any off-state
leakage current may activate the timer.
RESET AND PROGRAM OPTIONS
Connecting a wire from the RST EN (Reset Enable) or the HS (Program
Enable) Input terminals to Common will enable the front panel Reset or
Program buttons respectively.
Pulling the “RST.” input low causes the timer to reset. The “RST.” can be
pulled low by either a mechanical switch or solid-state transistor switch. The
Switch load is 15 μA (max. voltage drop 0.5 V) when ON. The OFF-state
leakage current must be less than 2 μA.
Note: The RC protection circuit on the “RST.” Input causes a delay of
approximately 15 msec in Reset response.
MODEL NO. DESCRIPTION
*CUB7T3 VOLTAGE
INPUT
Timer; Positive Image Reflective CUB7T300
Timer, w/Yel-Grn Backlighting CUB7T310
BNL Replacement 3 V Lithium Battery
Timer; w/Red Backlighting
BNL10000
CUB7T320
PART
NUMBER
ORDERING INFORMATION
BACKLIGHT OPTION
Optional backlight versions of the CUB7T require an external 9 to 26 VDC
power supply. The external supply is connected between the V+ and common
terminals as shown in the drawing.
*Battery is included with unit.

D
2491-717-767-6511
zLCD, REFLECTIVE OR RED/GREEN LED BACKLIGHTING
z0.46" (11.7 mm) HIGH DIGITS
z7-DIGIT BI-DIRECTIONAL TIMING CAPABILITY
z6-DIGIT CYCLE COUNTING CAPABILITY
zOPTIONAL RELAY OUTPUT MODULE
zOPTIONAL SERIAL COMMUNICATIONS MODULE (RS232 or RS485)
zSELECTABLE TIMER RANGES AND OPERATING MODES
zELAPSED TIMER AND PRESET TIMER FUNCTIONALITY
zDISPLAY COLOR CHANGE CAPABILITY AT PRESET OUTPUT
zOPERATES FROM 9 TO 28 VDC POWER SOURCE
zNEMA 4X/IP65 SEALED FRONT BEZEL
MODEL CUB5T - MINIATURE ELECTRONIC PRESET TIMER
AND CYCLE COUNTER
GENERAL DESCRIPTION
The CUB5T provides the ultimate in timer flexibility, from its complete user
programming to the optional relay output and serial communications capability.
The meter functions as an Elapsed Timer or Preset Timer. It also has a built-in
Cycle Counter. The display can be toggled either manually or automatically
between the Timer and Cycle Counter values. With eight different input
operating modes and 18 selectable timer ranges, the meter can be programmed
for a wide variety of timing applications.
The CUB5T has an LCD display with 0.46" (11.7 mm) high digits. The LCD
is available in two versions, reflective (CUB5TR00) and backlight
(CUB5TB00). The backlight version is user selectable for red or green
backlighting with variable display intensity.
The Timer has two signal inputs and eight input operating modes. These
modes provide level active or edge triggered start/stop operation. A Display
Hold mode will display the elapsed time for one cycle, while the next cycle
continues timing internally. The Timer Reset modes will automatically reset the
timer value when a time start edge is applied to the input. This allows sequential
timing cycles without having to manually reset the Timer.
In addition to the Timer inputs, a programmable User Input is available to
perform a variety of meter functions. All inputs are current sinking (active low)
and accept a variety of logic and open-collector output signal sources. Relay and
switch contacts can also be used as signal sources, when the software input
debounce filter is enabled.
The capability of the CUB5T can be easily expanded with the addition of a
field installable option module. When the CUB5RLY0 relay output module is
added, the meter becomes a Preset Timer. The Setpoint Output can be assigned
to the Timer or Cycle Counter values, and configured to suit a variety of control
and alarm requirements. Serial communications capability for RS232 or RS485
is added with a serial option module (CUB5COM).
The CUB5T can be powered from an optional Red Lion Micro-Line/Sensor
Power Supply (MLPS1000), which attaches directly to the back of a CUB5T.
The MLPS1 is powered from an 85 to 250 VAC source and provides up to 400
mA to drive the meter and sensors.
SAFETY SUMMARY
All safety related regulations, local codes and instructions that appear in this
literature or on equipment must be observed to ensure personal safety and to
prevent damage to either the instrument or equipment connected to it. If
equipment is used in a manner not specified by the manufacturer, the protection
provided by the equipment may be impaired.
Do not use this meter to directly command motors, valves, or other actuators
not equipped with safeguards. To do so can be potentially harmful to persons or
equipment in the event of a fault to the meter.
CAUTION: Risk of Danger.
Read complete instructions prior to
installation and operation of the unit.
CAUTION: Risk of electric shock.
DIMENSIONS In inches (mm) Note: Recommended minimum clearance (behind the panel) for mounting clip installation is 2.15" (54.6) H x 3.00" (76.2) W.
C
C
US LISTED
US LISTED
UL
R
IND. CONT. EQ.
51EB

D
250 www.redlion.net
1. DISPLAY: 8 digit LCD 0.46" (11.7 mm) high digits
CUB5TR00: Reflective LCD with full viewing angle
CUB5TB00: Selectable transmissive red or green backlight LED with
viewing angle optimized. Display color change capability at preset when
using a relay module.
2. POWER: Input voltage range is +9 to +28 VDC with short circuit and input
polarity protection. Must use an RLC model MLPS1 or a Class 2 or SELV
rated power supply.
3. TIMER DISPLAY: 7-digits
Display Designator: “t” to the left side of the display
Display Range: 0 to 9999999
Overflow/Underflow Indication: Display flashes “t OVEr”
Minimum Digit Resolution: 0.001 Sec.
Maximum Single Digit Resolution: 1 Hr.
Timing Accuracy: ±0.01%
4. CYCLE COUNTER DISPLAY: 6-digits, may be disabled if not used
Display Designator: “C” to the left side of the display
Display Range: 0 to 999999
Overflow/Underflow Indication: Display flashes “C OVEr”
Maximum Count Rate:
All Count Sources except Input B: 10 Hz
Input B Count Source:
With Timer Input Filter ON: 10 Hz
With Timer Input Filter OFF: 500 Hz
5. TIMER SIGNAL INPUTS (INP A and INP B)
Logic Inputs, Current Sinking (active low)
Input A:
Internal 7.8KΩpull-up resistor to +9 to 28 VDC
Trigger levels: VIL = 1.25 V max; VIH = 2.75 V min; VMAX = 28 VDC
Input B:
Internal 10KΩpull-up resistor to +9 to 28 VDC
Trigger levels: VIL = 1.0 V max; VIH = 2.4 V min; VMAX = 28 VDC
Inputs A and B:
Timer Input Pulse Width: 1 msec min.
Timer Start/Stop Response Time: 1 msec max.
Filter: Software filtering provided for relay or switch contact debounce.
Filter enabled or disabled through programming. If enabled, results in
50 msec start/stop response time for successive pulses applied to the
same input terminal.
6. USER INPUT (USR): Programmable function input
Logic Input, Current Sinking (active low)
Internal 10KΩpull-up resistor to +9 to 28 VDC
Trigger levels: VIL = 1.0 V max; VIH = 2.4 V min; VMAX = 28 VDC
Response Time: 5 msec typ.; 50 msec debounce (activation and release)
7. MEMORY: Nonvolatile E2PROM memory retains all programming
parameters and timer/counter values when power is removed.
8. CONNECTIONS: Wire clamping screw terminals
Wire Strip Length: 0.3" (7.5 mm)
Wire Gage: 30-14 AWG copper wire
Torque: 5 inch-lbs (0.565 N-m) max.
9. ENVIRONMENTAL CONDITIONS:
Operating Temperature Range for CUB5TR00: -35 to 75°C
Operating Temperature Range for CUB5TB00 depends on display color
and intensity level as per below:
Storage Temperature: -35 to 85°C
Operating and Storage Humidity: 0 to 85% max. relative humidity (non-
condensing)
Vibration According to IEC 68-2-6: Operational 5 to 500 Hz, in X, Y, Z
direction for 1.5 hours, 5 g’s.
Shock According to IEC 68-2-27: Operational 40 g, 11 msec in 3 directions.
Altitude: Up to 2000 meters
10. CERTIFICATIONS AND COMPLIANCES:
SAFETY
UL Listed, File # E137808, UL508, CSA C22.2 No. 14-M95
LISTED by Und. Lab. Inc. to U.S. and Canadian safety standards
Type 4X Indoor Enclosure rating (Face only), UL50
IEC 61010-1, EN 61010-1: Safety requirements for electrical equipment
for measurement, control, and laboratory use, Part 1.
IP65 Enclosure rating (Face only), IEC 529
ELECTROMAGNETIC COMPATIBILITY
Emissions and Immunity to EN 61326: Electrical Equipment for
Measurement, Control and Laboratory use.
Notes:
1. Criterion A: Normal operation within specified limits.
Refer to EMC Installation Guidelines for additional information.
11. CONSTRUCTION: This unit is rated for NEMA 4X/IP65 requirements for
indoor use. Installation Category I, Pollution Degree 2. High impact plastic
case with clear viewing window. Panel gasket and mounting clip included.
12. WEIGHT: 3.2 oz (100 g)
GENERAL METER SPECIFICATIONS
ORDERING INFORMATION
TYPE MODEL NO. DESCRIPTION PART NUMBER
CUB5T CUB5TR CUB5TR00
CUB5TB CUB5TB00
Optional Plug-in Cards
CUB5RLY
CUB5COM RS232 Serial Communications Card
RS485 Serial Communications Card
Single Relay Option Card
CUB5COM2
CUB5COM1
CUB5RLY0
Accessories CBLPRO
CBPRO
MLPS1
Programming Cable RS232 (RJ11-DB9)
Programming Cable RS485 (RJ11-DB9)
Micro-Line Power Supply, 85 to 250 VAC
CBLPROG0
CBPRO007
MLPS1000
Preset Timer and Cycle Counter with Reflective Display
Preset Timer and Cycle Counter with Backlight Display
MODEL
NUMBER DISPLAY COLOR
INPUT CURRENT
WITHOUT
CUB5RLY0
INPUT CURRENT
WITH
CUB5RLY0
CUB5TR00 --- 10 mA 30 mA
CUB5TB00 Red (max intensity) 85 mA 115 mA
CUB5TB00 Green (max intensity) 95 mA 125 mA
TEMPERATURE
1 & 2 -35 to 75°C
3-35 to 70°C
4-35 to 60°C
5-35 to 50°C
1 & 2 -35 to 75°C
3-35 to 65°C
5
4
-35 to 35°C
-35 to 50°C
INTENSITY LEVEL
Class AEN 55011Emissions
Emissions:
30 A/m
3 V/rms
Criterion A
Criterion A
EN 61000-4-8
EN 61000-4-6RF conducted interference
1 kV L-L,
Criterion AEN 61000-4-5Surge
1 kV signal
2 kV power
Criterion AEN 61000-4-4Fast transients (burst)
2 kV L&N-E power
10 V/m
Criterion AEN 61000-4-3Electromagnetic RF fields
8 kV air discharge
4 kV contact discharge
Criterion AEN 61000-4-2Electrostatic discharge
Immunity to Industrial Locations:
Power frequency magnetic fields
Red Display
Green Display

D
2511-717-767-6511
ADDING OPTION CARDS
The CUB5T meters can be fitted with optional relay card and/or serial
communications cards. The details for the plug-in cards can be reviewed in the
specification section below. The plug-in cards, that are sold separately, can be
installed initially or at a later date.
RELAY CARD
Type: Single FORM-C relay
Isolation To Sensor & User Input Commons: 1400 Vrms for 1 min.
Working Voltage: 150 Vrms
Contact Rating: 1 amp @ 30 VDC resistive; 0.3 amp @ 125 VAC resistive
Life Expectancy: 100,000 minimum operations
Response Time:
Turn On Time: 4 msec max.
Turn Off Time: 4 msec max.
Time Accuracy: ± 0.01%
WARNING: Disconnect all power to the meter before
installing Plug-in card.
RS485 SERIAL COMMUNICATIONS CARD
Type: RS485 multi-point balanced interface (non-isolated)
Baud Rate: 300 to 38400
Data Format: 7/8 bits; odd, even, or no parity
Bus Address: 0 to 99; max 32 meters per line
Transmit Delay: Selectable. 2 msec min. or 50 msec min.
RS232 SERIAL COMMUNICATIONS CARD
Type: RS232 half duplex (non-isolated)
Baud Rate: 300 to 38400
Data Format: 7/8 bits; odd, even, or no parity
OPTIONAL PLUG-IN CARDS
1.0 INSTALLING THE METER
INSTALLATION
The meter meets NEMA 4X/IP65 requirements when properly installed. The
unit is intended to be mounted into an enclosed panel. Prepare the panel cutout
to the dimensions shown. Remove the panel latch from the unit. Slide the panel
gasket over the rear of the unit to the back of the bezel.
The unit should be installed fully assembled. Insert
the unit into the panel cutout.
While holding the unit in place, push the panel latch over the rear of the unit
so that the tabs of the panel latch engage in the slots on the case. The panel latch
should be engaged in the farthest forward slot possible. To achieve a proper seal,
tighten the latch screws evenly until the unit is snug in the panel (Torque to
approx. 28 to 36 in-oz [0.202 to 0.26 N-m]). Do not over-tighten the screws.
INSTALLATION ENVIRONMENT
The unit should be installed in a location that does not exceed the operating
temperature and provides good air circulation. Placing the unit near devices that
generate excessive heat should be avoided.
The bezel should only be cleaned with a soft cloth and neutral soap product.
Do NOT use solvents. Continuous exposure to direct sunlight may accelerate the
aging process of the bezel.
Do not use tools of any kind (screwdrivers, pens, pencils, etc.) to operate the
keypad of the unit.
2.0 DIP SWITCHES
The DIP switches on the main circuit board are not used with the CUB5T and
must be left in the factory set position (all down). Setting any switch to the up
position may cause improper operation of the meter.

D
252 www.redlion.net
WIRING OVERVIEW
Electrical connections are made via screw-clamp terminals located on the
back of the meter. All conductors should conform to the meter’s voltage and
current ratings. All cabling should conform to appropriate standards of good
installation, local codes and regulations. It is recommended that the power
supplied to the meter (DC or AC) be protected by a fuse or circuit breaker.
Strip the wire, leaving approximately 0.3" (7.5 mm) bare lead exposed
(stranded wires should be tinned with solder.) Insert the lead under the correct
screw-clamp terminal and tighten until the wire is secure. (Pull wire to verify
tightness.) Each terminal can accept up to one #14 AWG (2.55 mm) wire, two
#18 AWG (1.02 mm), or four #20 AWG (0.61 mm).
EMC INSTALLATION GUIDELINES
Although this meter is designed with a high degree of immunity to Electro-
Magnetic Interference (EMI), proper installation and wiring methods must be
followed to ensure compatibility in each application. The type of the electrical
noise, source or coupling method into the meter may be different for various
installations. The meter becomes more immune to EMI with fewer I/O
connections. Cable length, routing, and shield termination are very important
and can mean the difference between a successful or troublesome installation.
Listed below are some EMC guidelines for successful installation in an
industrial environment.
1. The meter should be mounted in a metal enclosure, which is properly
connected to protective earth.
2. Use shielded (screened) cables for all Signal and Control inputs. The shield
(screen) pigtail connection should be made as short as possible. The
connection point for the shield depends somewhat upon the application.
Listed below are the recommended methods of connecting the shield, in order
of their effectiveness.
a. Connect the shield only at the panel where the unit is mounted to earth
ground (protective earth).
b. Connect the shield to earth ground at both ends of the cable, usually when
the noise source frequency is above 1 MHz.
c. Connect the shield to common of the meter and leave the other end of the
shield unconnected and insulated from earth ground.
3. Never run Signal or Control cables in the same conduit or raceway with AC
power lines, conductors feeding motors, solenoids, SCR controls, and
heaters, etc. The cables should be ran in metal conduit that is properly
grounded. This is especially useful in applications where cable runs are long
and portable two-way radios are used in close proximity or if the installation
is near a commercial radio transmitter.
4. Signal or Control cables within an enclosure should be routed as far as possible
from contactors, control relays, transformers, and other noisy components.
5. In extremely high EMI environments, the use of external EMI suppression
devices, such as ferrite suppression cores, is effective. Install them on Signal
and Control cables as close to the unit as possible. Loop the cable through the
core several times or use multiple cores on each cable for additional protection.
Install line filters on the power input cable to the unit to suppress power line
interference. Install them near the power entry point of the enclosure. The
following EMI suppression devices (or equivalent) are recommended:
Ferrite Suppression Cores for signal and control cables:
Fair-Rite # 0443167251 (RLC# FCOR0000)
TDK # ZCAT3035-1330A
Steward # 28B2029-0A0
Line Filters for input power cables:
Schaffner # FN610-1/07 (RLC# LFIL0000)
Schaffner # FN670-1.8/07
Corcom # 1 VR3
Note: Reference manufacturer’s instructions when installing a line filter.
6. Long cable runs are more susceptible to EMI pickup than short cable runs.
Therefore, keep cable runs as short as possible.
7. Switching of inductive loads produces high EMI. Use of snubbers across
inductive loads suppresses EMI.
Snubber: RLC# SNUB0000.
4.0 WIRING THE METER
The Plug-in cards are separately purchased option cards that perform specific
functions. The cards plug into the main circuit board of the meter after the rear
cover is removed
WARNING: Disconnect all power to the meter before
installing Plug-in Card.
REMOVING THE REAR COVER
To remove the rear cover, locate the cover locking tab below the 2nd and 3rd
input terminals. To release the tab, insert a small, flat blade screwdriver between
the tab and the plastic wall below the terminals. Inserting the screwdriver will
provide enough pressure to release the tab locks. To replace the cover, align the
cover with the input terminals and press down until the cover snaps into place.
CAUTION: The Plug-in cards and main circuit board contain static
sensitive components. Before handling the cards, discharge static
charges from your body by touching a grounded bare metal object.
Ideally, handle the cards at a static controlled clean workstation. Also,
only handle the cards by the edges. Dirt, oil or other contaminants
that may contact the cards can adversely affect circuit operation.
3.0 INSTALLING PLUG-INCARDS
Comms Card Relay Card

D
2531-717-767-6511
4.1 POWER WIRING
DC Power
+9 to +28 VDC: +VDC
Power Common: -VDC
4.2 USER INPUT WIRING
Sinking Logic
INP COMM
USR
The user input of the meter is
internally pulled up to +9 to +28 V
with 10 K resistance. The input is
active when it is pulled low.
Connect external switching device between the
User Input terminal and Input Common.
}
4.3 INPUT WIRING
CAUTION: Power input common is NOT isolated from user input common. In order to preserve the safety of the meter application, the power input
common must be suitably isolated from hazardous live earth referenced voltage; or input common must be at protective earth ground potential. If not,
hazardous voltage may be present at the User Inputs and User Input Common terminals. Appropriate considerations must then be given to the potential
of the user input common with respect to earth ground; and the common of the plug-in cards with respect to input common.
Interfacing With TTLCurrent Sinking Output
Input A
Switch or Isolated Transistor; Current Sink
Input A
4.4 SETPOINT (OUTPUT) WIRING
4.5 SERIAL COMMUNICATION WIRING
ELECTRICAL CONNECTIONS
SETPOINT RELAY PLUG-IN CARD
SERIAL COMMUNICATIONS PLUG-IN CARD RJ11 CONNECTOR PIN OUTS
Input A

D
254 www.redlion.net
PROGRAMMING MODE ENTRY (SEL KEY)
It is recommended all programming changes be made off line, or before
installation. The meter normally operates in the Display Mode. No parameters
can be programmed in this mode. The Programming Mode is entered by
pressing and holding the SEL key. If it is not accessible, then it is locked by
either a security code, or a hardware lock (See Module 3).
MODULE ENTRY (SEL & RST KEYS)
The Programming Menu is organized into separate modules. These modules
group together parameters that are related in function. The display will alternate
between Pro and the present module. The RST key is used to select the desired
module. The displayed module is entered by pressing the SEL key.
MODULE MENU (SEL KEY)
Each module has a separate module menu (which is shown at the start of each
module discussion). The SEL key is pressed to advance to a particular parameter
to be changed, without changing the programming of preceding parameters.
After completing a module, the display will return to Pro NO. Programming
may continue by accessing additional modules.
SELECTION / VALUE ENTRY
For each parameter, the display alternates between the present parameter and
the selections/value for that parameter. The RST key is used to move through the
selections/values for that parameter. Pressing the SEL key, stores and activates the
displayed selection/value. This also advances the meter to the next parameter.
For numeric values, press the RST key to access the value. The right hand
most digit will begin to flash. Pressing the RST key again increments the digit
by one or the user can hold the RST key and the digit will automatically scroll.
The SEL key will advance to the next digit. Pressing and holding the SEL key
will enter the value and move to the next parameter.
PROGRAMMING MODE EXIT (SEL KEY)
The Programming Mode is exited by pressing the SEL key with Pro NO
displayed. This will commit any stored parameter changes to memory and
return the meter to the Display Mode. (If power loss occurs before returning to
the Display Mode, verify recent parameter changes.)
PROGRAMMING TIPS
It is recommended to start with Module 1 and proceed through each module
in sequence. When programming is complete, it is recommended to record the
parameter programming and lock out parameter programming with the user
input or programming security code.
FACTORY SETTINGS
Factory Settings may be completely restored in Module 3. This is useful
when encountering programming problems.
Pressing the RST key on power-up will load the factory settings and display
rESEt. This allows operation in the event of a memory failure or corrupted data.
ALTERNATING SELECTION DISPLAY
In the explanation of the modules, the following dual display with arrows will
appear. This is used to illustrate the display alternating between the parameter
on top and the parameter’s Factory Setting on the bottom. In most cases,
selections and values for the parameter will be listed on the right.
6.0 PROGRAMMING THE METER
OVERVIEW
PROGRAMMING MENU
Indicates Program Mode Alternating Display
Factory Settings are shown.
Parameter
Selection/Value
ª
«
LEVEL
INPUtsOP
5.0 REVIEWING THE FRONT BUTTONS AND DISPLAY
KEY DISPLAY MODE OPERATION ENTERING PROGRAM MODE PROGRAMMING MODE OPERATION
SEL Select display (timer or cycle counter) Press and hold for 2 seconds to activate Store selected parameter and index to next parameter
RST Reset value(s) per Front Panel Reset setting Advances through the program menu
Increments selected parameter value or selection
OPERATING MODE DISPLAY DESIGNATORS
“t” - To the left of the display is the timer value.
“C” - To the left of the display is the cycle counter value.
“1” - To the upper left of the display indicates the setpoint status.
If display scroll is enabled, the display will toggle automatically every four seconds between the timer and cycle counter values.

D
2551-717-767-6511
6.1 MODULE 1 - TIMER INPUT PARAMETERS (1-INPUt)
PARAMETER MENU
ª
«
5555555
RANGE
This parameter determines how the Timer Input Signals affect the Run/Stop
status of the Timer. Timing diagrams are shown below for level active and edge
triggered (1-input or 2-input) operation. For single input modes (Input A only),
Input B provides a level active Timer Inhibit function. In the Display Hold
mode, the timer display value remains held and only updates when a Timer
Start (Input A) or Timer Stop (Input B) edge occurs.
The timer reset (rSt) operating modes are identical to the other modes in the
diagrams, except the timer display value is reset at the Time Start edges.
The Timer can also be stopped at a Timer Stop Value or at Setpoint output
activation or deactivation. This type of Stop condition is cleared when a Timer
Reset occurs, or another start edge is applied on the timer input.
For Reset Modes (rSt), the timer is reset at Time Start edge.
18 TIMER RANGE SELECTIONS
(S = SEC; N = MIN; H = HR; d = DAY))
TIMER RANGE
ª
«
LEVEL
INPUtsOP
Level Active (Gated) Operation
INPUT A
INPUT B - Timer Inhibit (Level Active)
Time
Start
Time
Stop
Time
Start
Time
Stop
Edge Triggered Operation -1 Input
INPUT A
INPUT B - Timer Inhibit (Level Active)
Time
Start
Time
Stop
Time
Start
Time
Stop
Ed9E-1, Ed-1srSt
LEVEL, LEVsrSt
TIMER INPUT OPERATION
HHHHH.HH 99999.99 0.01 HR
HHHHHHH 9999999 1 HR
HHHHHH.H 999999.9 0.1 HR
HOURS
NNNNNN.N 999999.9 0.1 MIN
NNNNN.NN 99999.99 0.01 MIN
MINUTES
NNNNNNN 9999999 1 MIN
55555.55 99999.99 0.01 SEC
5555.555 9999.999 0.001 SEC
5555555 9999999 1 SEC
555555.5 999999.9 0.1 SEC
MAXIMUM
DISPLAY
DISPLAY
RESOLUTION
RANGE
SELECTION
SECONDS
DAYS/HOURS/MINUTES
ddd.HH.NN 999.23.59 1 MIN
HHH.NN.SS 999.59.59 1 SEC
HOURS/MINUTES/SECONDS
HHHH.NN.N 9999.59.9 0.1 MIN
HHH.NN.NN 999.59.99 0.01 MIN
HOURS/MINUTES
HHHHH.NN 99999.59 1 MIN
NNN.SS.SS 999.59.99 0.01 SEC
NNNNN.SS 99999.59 1 SEC
NNNN.SS.S 9999.59.9 0.1 SEC
MAXIMUM
DISPLAY
DISPLAY
RESOLUTION
RANGE
SELECTION
MINUTES/SECONDS
LEVsrSt
LEVEL
Ed-1srSt
Ed9E-1
HOLdsrSt
HOLd-2
Ed-2srSt
Ed9E-2
ON OFF
TIMING DIRECTION
Bi-directional timing capability. Select the timing direction desired for the
application.
0000000 to 9999999
ª
«
ON
FILtEr
ª
«
UP
t-dir
ª
«
0000000
t-Strt
TIMER INPUT FILTER
Provides a 50 msec software debounce for the Timer Inputs (A and B). Select
ON when using relays or switch contacts as a signal source.
TIMER START VALUE
The Timer returns to this value whenever a Timer Reset occurs. The value is
entered in the same display format as the Timer Range selected. Non-zero
values are normally used for “timing down” applications, but they can also
provide an offset value when timing up.
Edge Triggered Operation - 2 Input
INPUT A
INPUT B
Time
Start
Time
Start
Time
Stop
Time
Stop
Edge Triggered Operation - 2 Input,
with Display Hold
INPUT A
INPUT B
Time Stop,
Display Update
Time Start,
Display Update
Time Start,
Display Update
Display
Update
HOLd-2, HOLdsrSt Ed9E-2, Ed-2srSt
dnUP
NO YES
FLASH TIMER ANNUNCIATOR
Select YES to have the timer annunciator (t) flash when the timer is running.
ª
«
YES
t-FLASH
NO YES
TIMER STOP VALUE
The Timer stops when this value is reached regardless of the signal levels on
the timer inputs. Selecting YES displays a sub-menu where the Stop Value is
entered in the same display format as the Timer Range selected. This stop
condition is cleared when a Timer Reset occurs or another start edge is applied
on the timer input. Select NO if a Stop Value is not desired.
ª
«
NO
t-StOP
StOP SAVE
TIMER RUN STATE AT POWER-UP
Determines the Run/Stop state of the Timer at Power-up. This parameter
does not apply to LEVEL Input Operation.
StOP - Timer Stopped at power-up, regardless of prior Run/Stop state
SAVE - Timer assumes the Run/Stop state it was in prior to power-down
ª
«
StOP
RunsP-UP
0000000 to 9999999
ª
«
0000000
StOP VAL

D
256 www.redlion.net
6.2 MODULE 2 - CYCLE COUNTER PARAMETERS (2-Count)
PARAMETER MENU
CYCLE COUNTER ENABLE
When set to NO, the remaining Cycle Counter parameters are not accessible.
This parameter selects the source from which the Cycle Counter derives
counts. The Timer Reset (t-rESEt)selection generates a count when either a
manual or automatic timer reset occurs (See Module 4 for programming
Automatic Reset). The Input B (INPUt b) selection generates a count each time
Input B is activated. This selection overrides the timer inhibit function of Input
B, when the timer is programmed for Level or Edge-1 operating mode (See
Module 1 for Timer Input Operating Modes).
The User Input (USr1NP)selection generates a count each time the User Input
is activated. When selected as the count source, the User Input can still be set
to perform a User Function described in Module 1. In this case, the Cycle
Counter will count the number of times the selected User Function occurred.
The Output ON/OFF selections generate a count when the Setpoint output
either activates or deactivates. These selections will only generate counts when
an optional Setpoint module is installed.
CYCLE COUNTER COUNT SOURCE
t-rESEt
OUt-ON
OUt-OFF
INPUtsb
USrsINP
CYCLE COUNTER START VALUE
CYCLE COUNTER COUNTING DIRECTION
Bi-directional counting capability. Select the counting direction desired for
the application.
The Cycle Counter returns to this value whenever a Counter Reset occurs.
Non-zero values are normally used for “down counting” applications, but can
also provide an offset value when counting up.
UP dn
000000 to 999999
USER INPUT ASSIGNMENT
The User Input Assignment only applies if the cycle counter is enabled and
a selection of reset, display hold, hold and reset, inhibit, or print and reset is
selected in the User Input Function menu.
USER INPUT FUNCTION
USER INPUT FUNCTION (Cont’d)
MODEDISPLAY
No Function
NO
DESCRIPTION
User Input disabled.
Program Mode Lock-out
Pro Loc
Display Select
(Edge triggered)
d-SELECt Toggle display with each
activation.
Maintained Reset
rESEt Level active reset of the
selected value(s).
Display Hold
d-HOLd
Hold and Reset
HOLd-rSt
Edge triggered reset of the
selected value(s) after
storing the time or count.
t-VALUE
C-VALUE
both t-C
See Programming Mode
Access chart (Module 3).
Freeze display for the selected
value(s) while allowing time or
counts to accumulate internally.
ª
«
NO
USErsINP
ª
«
t-VALVE
USErsASN
ª
«
YES
CntsEnb
ª
«
UP
Cntsdir
ª
«
t-rESEt
CntsSrc
ª
«
000000
CntsStrt
CYCLE COUNTER RESET AT POWER-UP
The Cycle Counter can be programmed to Reset at each meter power-up.
NO YES
ª
«
NO
RStsP-UP
YESNO
NO YES
TIMER RESET AT POWER-UP
The Timer can be programmed to Reset at each meter power-up.
ª
«
YES
RStsP-UP
Print
Serial transmit of the active
parameters selected in the Print
Options menu (Module 5).
Print Request
r5t OUt
Prnt-r5t
Edge triggered deactivation of
the Setpoint Output.
Same as Print Request followed
by a momentary reset of the
selected value(s).
Reset Output
Print and Reset
Inhibit Inhibit timing or counting for the
selected value(s).
d-LEVEL
Increase intensity one level
for each activation. (backlight
version only)
DISPLAY DESCRIPTION
Inhibit
Display Intensity Level
(Edge Triggered)
MODE

D
2571-717-767-6511
The yES selection allows the SEL button to toggle between the timer and cycle
counter displays.
FRONT PANEL DISPLAY SELECT ENABLE (SEL)
6.3 MODULE 3 - DISPLAY AND FRONT PANEL KEY
PARAMETERS (3-dSPLAY)
PARAMETER MENU
The yES selection allows the RST button to reset the selected value(s). The
shaded selections only appear if the cycle counter is enabled.
FRONT PANEL RESET ENABLE (RST)
The yES selection allows the display to automatically scroll between the timer
and cycle counter values. The scroll rate is about every 4 seconds.
DISPLAY SCROLL ENABLE
Enter the desired display color, red or green. This parameter is active for
backlight units only.
DISPLAY COLOR (BACKLIGHT UNIT ONLY)
Enter the desired Display Intensity Level (1-5). The display will actively dim
or brighten as levels are changed. This parameter is active for backlight units only.
DISPLAY INTENSITY LEVEL (BACKLIGHT UNIT ONLY)
The Security Code determines the programming mode and the accessibility
of programming parameters. This code can be used along with the Program
Mode Lock-out (Pro Loc) in the User Input Function parameter (Module 1).
Two programming modes are available. Full Programming mode allows all
parameters to be viewed and modified. Quick Programming mode permits only
the Setpoint values and Timer Stop value to be modified, but allows direct
access to these values without having to enter Full Programming mode.
Programming a Security Code other than 0, requires this code to be entered
at the Pro CodE prompt in order to access Full Programming mode. Depending
on the code value, Quick Programming may be accessible before the Pro CodE
prompt appears (see chart).
PROGRAMMING SECURITY CODE
The yES selection will return the meter to the factory default settings. The
meter will display rESEt and then return to Pro, at which time all settings have
been changed.
Pressing the RST key on power-up will load the factory settings and display
rESEt. This allows operation in the event of a memory failure or corrupted data.
LOAD FACTORY DEFAULT SETTINGS
NOyES
C-VALUE
both t-C
dSPLAy
yES
NO
NO
t-VALUE
NOyES
6rnrEd
0 to 999
yESNO
ª
«
yES
SELsEnb
ª
«
YES
RStsEnb
ª
«
NO
d-ScroLL
ª
«
rEd
d-COLOr
ª
«
5
d-LEVEL
ª
«
000
ProsCodE
ª
«
MO
FACtsSEt
1 to 5
USER INPUT
FUNCTION
USER INPUT
STATE
SECURITY
CODE
FULL PROGRAMMING
MODE ACCESS
0Full Programming Immediate Access
not Pro Loc ______ 1-99 Quick
Programming
100-999 Pro CodE prompt With correct code entry
at Pro CodE prompt *
0Programming
Lock No Access
Active 1-99 Quick
Programming No Access
Pro Loc
100-999 Pro CodE prompt With correct code entry
at Pro CodE prompt *
Not Active 0-999 Full Programming Immediate Access
After Quick Programming
with correct code entry at
Pro CodE prompt *
MODE WHEN “SEL”
KEY IS PRESSED
* Entering Code 222 allows access regardless of security code.

D
258 www.redlion.net
SAVE will restore the output to the same state it was at before the meter was
powered down. ON will activate the output at power up. OFF will deactivate the
output at power up. This parameter is not active when the Setpoint Action is
selected for timed output mode.
SETPOINT OUTPUT POWER-UP STATE
Stops the Timer when the Setpoint output activates (OUt-ON) or deactivates
(OUt-OFF). Select NO if the output should not affect the Timer Run/Stop status.
The Timer Stop condition is cleared when a Timer Reset occurs, or a Time
Start edge is applied on the Timer input.
STOP TIMER
SETPOINT OUTPUT TIME-OUT
SPT ACTION DESCRIPTION OUTPUT ACTIVATES OUTPUT DEACTIVATES
LAtCH Latched Output Mode When Time or Count
= Setpoint On value
At Manual Reset
(if SPt rSt = YES)
t-OUt Timed Output Mode When Time or Count
= Setpoint On value
After Setpoint
Output Time-Out
ON-OFF On-Off Output Mode When Time or Count
= Setpoint On value
When Time or Count
= Setpoint Off value
This parameter is only active if the Setpoint Action is set to Timed Output
mode (t-OUt). Enter the time duration the Setpoint Output will remain ON once
it is activated. This value is always entered in minutes, seconds, and hundredths
of seconds format. The maximum value is 99 minutes 59.99 seconds.
00.00.01 to 99.59.99
SETPOINT ON
This parameter determines when the Setpoint output will activate. The output
can activate at a programmed Setpoint Value or can be set to activate when the
Timer starts (t-Strt) or stops (t-StOP).
Selecting VALUE displays a sub-menu where the Setpoint Value is entered. If
the Setpoint is assigned to the Timer, the value is entered in the same display
format as the selected Timer Range.
Automatically resets the Setpoint Assigned display value when the Setpoint
Output activates (OUt-ON) or deactivates (OUt-OFF). Select NO if the output should
not cause a display reset.
TIMER/COUNTER AUTO RESET
Select YES to have the Setpoint Output deactivate (reset) when the Setpoint
Assigned display resets. Reset can occur by the RST button or the User Input,
if programmed for that function. Select /0 if the Setpoint output should not
reset when the display resets.
SETPOINT OUTPUT RESET WITH DISPLAY RESET
This parameter enables the backlight CUB5T to switch the display color when
the Setpoint output activates. When the output deactivates, the display color will
revert to the normal operating mode color. This parameter is only active for the
backlight version.
CHANGE DISPLAY COLOR w/SETPOINT OUTPUT STATE
ª
«
00.01.00
SPtstOUt
ª
«
VALUE
SPtsON
SETPOINT OFF
The Setpoint Off parameter only appears if the Setpoint Action is set to On-
Off Output mode (ON-OFF). In this mode, the Setpoint OFF parameter determines
when the Setpoint Output will deactivate. The output can be programmed to
deactivate at a Setpoint Off Value or can be set to deactivate when the Timer
starts (t-Strt) or stops (t-StOP).
Selecting VALUE displays a sub-menu where the Setpoint Off Value is entered.
If the Setpoint is assigned to the Timer, the value is entered in the same display
format as the selected Timer Range.
ª
«
VALUE
SPtsOFF
ª
«
OFF
SPtsP-UP
ª
«
NO
StOP-t
ª
«
NO
AUtOsrSt
ª
«
YES
SPtsrSt
ª
«
NO
Ch-COLOr
NO
Out-ON
Out-OFF
NOYES
YESNO
Out-OFF
Out-ON
NO
SAVE
ON
OFF
6.4 MODULE 4 - SETPOINT OUTPUT PARAMETERS (4-SEtPt)
PARAMETER MENU
The Setpoint Output Parameters are only active when the optional relay
module is installed in the meter. Some parameters will not appear depending on
the Setpoint Assignment and Setpoint Output Action selected.
Select the display for Setpoint assignment.
SETPOINT ASSIGNMENT
C-VALUEt-VALUE
ª
«
t-VALUE
SPtsASN
SETPOINT OUTPUT ACTION
This parameter selects the action of the Setpoint output as shown below.
LAtCH
t-OUt
ON-OFF
ª
«
LAtCH
SPtsACt
t-StOP
t-Strt
VALUE
t-StOP
t-Strt
VALUE
0000000 to 9999999
ª
«
0000100
SPt VAL
0000000 to 9999999
ª
«
0000200
SPOF VAL

D
2591-717-767-6511
DATA BIT
ABBREVIATED PRINTING
PRINT OPTIONS
PARITY BIT
METER ADDRESS
300 1200
600 2400
19200
38400
4800
9600
7-bit 8-bit
NO Odd EVEN
NO YES
NO YES
Module 5 is the programming module for the Serial Communications
Parameters. These parameters are used to match the serial settings of the
CUB5T with those of the host computer or other serial device. The Serial Setup
Parameters are only accessible when an optional RS232 or RS485 serial
communications module is installed in the meter.
This section replaces the bulletin shipped with the RS232 and RS485 serial
communications plug-in cards. Discard the separate bulletin when using those
serial plug-in cards with the CUB5T.
6.5 MODULE 5 - SERIAL COMMUNICATIONS PARAMETERS (5-SEriAL)
PARAMETER MENU
BAUD RATE
Set the baud rate to match that of other serial communications equipment.
Normally, the baud rate is set to the highest value that all of the serial
communications equipment is capable of transmitting and receiving.
Select either 7- or 8-bit data word length. Set the word length to match the
other serial communications equipment on the serial link.
This parameter only appears when the Data Bit parameter is set to a 7-bit
data word length. Set the parity bit to match that of the other serial equipment
on the serial link. The meter ignores parity when receiving data and sets the
parity bit for outgoing data. If parity is set to NO, an additional stop bit is used
to force the frame size to 10 bits.
Enter the serial node address. With a single unit, an address is not needed
and a value of zero can be used (RS232 applications). Otherwise, with multiple
bussed units, a unique address number must be assigned to each meter. The
node address applies specifically to RS485 applications.
This parameter determines the formatting of data transmitted from the meter
in response to a Transmit Value command or a Block Print Request. Select NO
for a full print transmission, consisting of the meter address, mnemonics, and
parameter data. Select YES for abbreviated print transmissions, consisting of the
parameter data only. This setting is applied to all the parameters selected in the
PRINT OPTIONS. (Note: If the meter address is 0, the address will not be sent
during a full transmission.)
ª
«
9600
bAUd
ª
«
7-bit
dAtA
ª
«
Odd
PAritY
ª
«
00
Addr
ª
«
NO
Abbr
ª
«
NO
Prnt OPt
0 to 99
This parameter selects the meter values transmitted in response to a Print
Request. A print request is also referred to as a block print because more than
one parameter can be sent to a printer or computer as a block.
Selecting YES displays a sublist for choosing the meter parameters to appear
in the print block. All active parameters entered as YES in the sublist will be
transmitted during a block print. Parameters entered as NO will not be sent.
The “Print All” (Prnt ALL) option selects all meter values for transmitting
(YES), without having to individually select each parameter in the sublist.
Note: Inactive parameters will not be sent regardless of the print option
setting. For example, the Cycle Counter and Cycle Counter Start values will
only be sent when the Cycle Counter is enabled. If disabled, these parameters
are inactive and will not be transmitted. Likewise, the Setpoint parameters will
not be sent unless an optional setpoint card is installed in the meter.
DISPLAY MNEMONIC
t-VALUE Timer YES TMR
C-VALUE Cycle Counter NO CNT
t-StOP
t-Strt
Timer Stop
Timer Start
NO
NO
TSP
TST
Cnt Strt NO CST
SPt ON NO SPT
SPt tOUt
SPt OFF
Setpoint Time-out
Setpoint OFF
NO
NO
STO
SOF
DESCRIPTION FACTORY
SETTING
Counter Start
Setpoint ON

D
260 www.redlion.net
Command String Construction
The command string must be constructed in a specific sequence. The meter
does not respond with an error message to illegal commands. The following
procedure details construction of a command string:
1. The first 2 or 3 characters consist of the Node Address Specifier (N) followed
by a 1 or 2 character node address number. The node address number of the
meter is programmable. If the node address is 0, this command and the node
address itself may be omitted. This is the only command that may be used in
conjunction with other commands.
2. After the optional address specifier, the next character is the command
character.
3. The next character is the register ID. This identifies the register that the
command affects. The P command does not require a register ID character. It
prints all the active selections chosen in the Print Options menu parameter.
4. If constructing a value change command (writing data), the numeric data is
sent next.
5. All command strings must be terminated with the string termination
characters * or $. The meter does not begin processing the command string
until this character is received. See timing diagram figure for differences in
meter response time when using the * and $ terminating characters.
Command String Examples:
1. Node address = 17, Write 350 to the Setpoint On value
String: N17VF350$
2. Node address = 5, Read Timer value, response time of 50 msec min
String: N5TA*
3. Node address = 0, Reset Setpoint output
String: RF*
4. Node address = 31, Request a Block Print Output, response time of 2 msec min
String: N31P$
Transmitting Data to the Meter
Numeric data sent to the meter must be limited to Transmit Details listed in the
Register Identification Chart. Leading zeros are ignored. The meter ignores any
decimal point and conforms the number to the appropriate display format. (For
example: The Timer range is set for tenths of a second and 25 is written to the
Timer Start register. The value of the register is now 2.5 seconds. In this case,
write a value of 250 to equal 25.0 seconds).
Note: Since the meter does not issue a reply to value change commands, follow
with a transmit value command for readback verification.
Sending Serial Commands and Data
When sending commands to the meter, a string containing at least one
command character must be constructed. A command string consists of a
command character, a value identifier, numerical data (if writing data to the
meter) followed by a command terminator character, * or $.
Command Chart
Register Identification Chart
ID Value Description MNEMONIC Transmit Details (T and V)
A Timer TMR 7 digit, per Timer Range
BCycle Counter CNT 6 digit
D
C
Timer Stop
Timer Start
TSP
TST
7 digit, per Timer Range
7 digit, per Timer Range
ECounter Start CST 6 digit
FSetpoint ON
(Reset Output) SPT per Setpoint Assignment,
same as Timer or Counter
H
G
Setpoint
Time-out
Setpoint OFF
STO
SOF
6 digit, mm.ss.ss format
per Setpoint Assignment,
same as Timer or Counter
T, V, R
T, V, R
T, V
T, V
T, V
T, V, R
T, V
T, V
Receiving Data From The Meter
Data is transmitted from the meter in response to either a transmit command
(T), a block print request command (P) or a User Input print request. The
response from the meter is either a full field transmission or an abbreviated
transmission, depending on the selection chosen in Module 5.
Full Field Transmission
* These characters only appear in the last line of a block print.
The first two characters transmitted are the meter address. If the address
assigned is 0, two spaces are substituted. A space follows the meter address field.
The next three characters are the register mnemonic, as shown in the Register
Identification Chart.
The numeric data is transmitted next. The numeric field (bytes 7 to 18) is 12
characters long. When a display overflow exists for a requested timer or cycle
counter value, an * (used as an overflow character) replaces a space in byte 7.
Byte 8 is always a space.
The remaining ten positions of this field consist of seven positions for the
requested value with decimal points positioned for the selected timer range. The
data within bytes 9 to 18 is right-aligned with leading spaces for any unfilled
positions.
The end of the response string is terminated with a <CR> and <LF>. After the
last line of a block print, an extra <SP>, <CR> and <LF> are added to provide
separation between the print blocks.
Abbreviated Transmission
* These characters only appear in the last line of a block print.
The abbreviated response suppresses the node address and register
mnemonic, leaving only the numeric part of the response.
Meter Response Examples:
1. Node address = 17, full field response, Cycle Counter = 875
17 CNT 875 <CR><LF>
2. Node address = 0, full field response, Setpoint On value = 250.5
SPT 250.5<CR><LF>
3. Node address = 0, abbreviated response, Setpoint On value= 250, last line of
block print
250<CR><LF><SP><CR><LF>
Byte Description
1, 2 2 byte Node Address field [00-99]
3<SP> (Space)
4-6 3 byte Register Mnemonic field
7-18
19 <CR> (carriage return)
20 <LF> (line feed)
21 <SP>* (Space)
22 <CR>* (carriage return)
23 <LF>* (line feed)
Byte Description
1-12 12 byte data field, 9 bytes for number and three bytes for
decimal points
13 <CR> (carriage return)
14 <LF> (line feed)
15 <SP>* (Space)
16 <CR>* (carriage return)
17 <LF>* (line feed)
12 byte data field; 9 bytes for number and three bytes for decimal
points
Applicable
Commands
Initiates a block print output. Registers in the
print block are selected in Print Options.
Block Print Request
(read)
P
Reset a value or the output. Must be followed
by a register ID character
ResetR
Write to register of the meter. Must be
followed by a register ID character and
numeric data.
Value Change (write)V
Read a register from the meter. Must be
followed by a register ID character.
Transmit Value (read)T
Address a specific meter. Must be followed by
one or two digit node address. Not required
when node address = 0.
Node (meter)
Address Specifier
N
NotesDescriptionCommand

D
2611-717-767-6511
Command Response Time
The meter can only receive data or transmit data at any one time (half-duplex
operation). During RS232 transmissions, the meter ignores commands while
transmitting data, but instead uses RXD as a busy signal. When sending
commands and data to the meter, a delay must be imposed before sending
another command. This allows enough time for the meter to process the
command and prepare for the next command.
At the start of the time interval t1, the computer program prints or writes the
string to the com port, thus initiating a transmission. During t1, the command
characters are under transmission and at the end of this period, the command
terminating character (* or $) is received by the meter. The time duration of t1
is dependent on the number of characters and baud rate of the channel.
t1= (10 times the # of characters) / baud rate
At the start of time interval t2, the meter starts the interpretation of the
command and when complete, performs the command function. This time
interval t2varies. If no response from the meter is expected, the meter is ready
to accept another command.
If the meter is to reply with data, the time interval t2is controlled by the use
of the command terminating character. The ‘*’ terminating character results in
a response time of 50 msec. minimum. This allows sufficient time for the
release of the sending driver on the RS485 bus. Terminating the command line
with ‘$’ results in a response time (t2) of 2 msec. minimum. The faster response
time of this terminating character requires that sending drivers release within 2
msec. after the terminating character is received.
At the beginning of time interval t3, the meter responds with the first
character of the reply. As with t1, the time duration of t3is dependent on the
number of characters and baud rate of the channel. At the end of t3, the meter is
ready to receive the next command.
t3= (10 times the # of characters) / baud rate
The maximum serial throughput of the meter is limited to the sum of the
times t1, t2and t3.
Timing Diagram Figure
Communication Format
Data is transferred from the meter through a serial communication channel.
In serial communications, the voltage is switched between a high and low level
at a predetermined rate (baud rate) using ASCII encoding. The receiving device
reads the voltage levels at the same intervals and then translates the switched
levels back to a character. The voltage level conventions depend on the interface
standard. The table lists the voltage levels for each standard.
Data is transmitted one byte at a time with a variable idle period between
characters (0 to ∞). Each ASCII character is “framed” with a beginning start bit,
an optional parity bit and one or more ending stop bits. The data format and
baud rate must match that of other equipment in order for communication to
take place. The figures list the data formats employed by the meter.
Start Bit and Data Bits
Data transmission always begins with the start bit. The start bit signals the
receiving device to prepare for reception of data. One bit period later, the least
significant bit of the ASCII encoded character is transmitted, followed by the
remaining data bits. The receiving device then reads each bit position as they are
transmitted.
Parity Bit
After the data bits, the parity bit is sent. The transmitter sets the parity bit to
a zero or a one, so that the total number of ones contained in the transmission
(including the parity bit) is either even or odd. This bit is used by the receiver
to detect errors that may occur to an odd number of bits in the transmission.
However, a single parity bit cannot detect errors that may occur to an even
number of bits. Given this limitation, the parity bit is often ignored by the
receiving device. The CUB5T meter ignores the parity bit of incoming data and
sets the parity bit to odd, even or none (mark parity) for outgoing data.
Stop Bit
The last character transmitted is the stop bit. The stop bit provides a single bit
period pause to allow the receiver to prepare to re-synchronize to the start of a
new transmission (start bit of next byte). The receiver then continuously looks
for the occurrence of the start bit. If 7 data bits and no parity is selected, then 2
stop bits are sent from the meter.
Character Frame Figure
LOGIC RS232* RS485*INTERFACE STATE
1TXD,RXD; -3 to -15 V a-b < -200 mVmark (idle)
0TXD,RXD; +3 to +15 V a-b > +200 mVspace (active)
* Voltage levels at the Receiver

D
262 www.redlion.net
CUB5T PROGRAMMING QUICK OVERVIEW
Press and hold SEL key to
enter Programming Mode.

D
2631-717-767-6511
OLCD, 7 SEGMENT, 2 LINE, 6 DIGIT DISPLAY, POSITIVE
REFLECTIVE OR NEGATIVE TRANSMISSIVE MODELS WITH
RED TOP LINE AND GREEN BOTTOM LINE BACKLIGHTING
OSOLID STATE AND RELAY OUTPUT MODELS
OFIELD REPLACEABLE RELAY OUTPUT BOARDS
OSTATUS INDICATORS FOR OUTPUTS
ONEMA 4X/IP65 SEALED FRONT BEZEL
OPROGRAMMABLE USER INPUTS AND FRONT PANEL FUNCTION
KEY
OPARAMETER SECURITY VIA PROGRAMMABLE OPERATOR
ACCESS PRIVILEGES AND PROTECTED VALUE MENU
OHORIZONTAL OR VERTICAL STACKING OF MULTIPLE UNITS
O85 to 250 VAC or 18 to 36 VDC/24 VAC POWERED UNITS
ORS485 SERIAL COMMUNICATIONS OPTION
OCHOICE OF NUMERIC DATA ENTRY MODES
DESCRIPTION
The Model C48 Timer is available in Single or Dual Preset models. The
C48T features a 7 segment, 2 line by 6 digit reflective or backlit LCD display.
For the backlit versions, the main display line is red and shows the timer value.
The smaller secondary display line is green, and can be used to view the preset
values or output time values.
The C48 timer can be configured for a variety of different operating modes
to meet most timing application requirements. Twelve timing ranges are
available from thousandths of a second to hours and minutes. Decimal Points
are used to separate the time units (hours, minutes, seconds). Timing can be
cumulative or can reset and start upon each power cycle. “On Delay” or “Off
Delay”, “Single Shot”, “Repetitive auto cycling” modes are all supported.
The Timer can also be configured to Continue or Stop timing upon reaching
Preset. The display can be programmed to stop at the preset value (Reset to Zero
mode) or zero (Reset to Preset mode), or automatically reset to zero or preset
and hold. Once stopped, the timer can be restarted by manually resetting it, or
it can be programmed to restart when power is reapplied.
The C48 Timer has a Run/Stop Input, 3 programmable User Inputs, and a
programmable front panel function key. The Run/Stop and User Inputs can be
configured as sinking (active low) or sourcing (active high) inputs via a single
plug jumper. The user inputs and the front panel function key can be configured
to provide a variety of functions.
Four front panel push-buttons are used for programming the operating modes
and data values, changing the viewed display, and performing user
programmable functions, e.g. reset, etc. The C48T can be configured for one of
two numeric data entry methods, digit entry or automatic scrolling. The digit
entry method allows for the selection and incrementing of digits individually.
The automatic scrolling method allows for the progressive change of one
through all digit positions by pressing and holding the “up” or “down” button.
The Dual Preset models are available with solid-state or Relay outputs. The
Single Preset model has a solid-state and relay output in parallel. All solid-state
outputs are available in a choice of NPN current sinking or PNP current
sourcing, open-collector transistor outputs. All relay output boards are field
replaceable.
The optional RS-485 serial communication interface provides two-way
communication between a C48 and other compatible equipment such as a
printer, PLC, HMI, or a host computer. In multipoint applications (up to thirty-
two), the address number of each C48 on the line can be programmed from 0 to
99. Data from the C48 can be interrogated or changed, and alarm output(s) may
be reset by sending the proper command code via serial communications. PC
software, SFC48, allows for easy configuration of controller parameters. These
settings can be saved to disk for later use or used for multi-controller down
loading. On-line help is provided within the software.
The unit is constructed of a lightweight, high impact plastic case with a
textured front panel and a clear display window. The front panel meets NEMA
4X/IP65 specifications when properly installed. Multiple units can be stacked
horizontally or vertically. Modern surface-mount technology, extensive testing,
plus high immunity to noise interference makes the C48 Timers extremely
reliable in industrial environments.
SAFETY SUMMARY
All safety related regulations, local codes and instructions that appear in the
manual or on equipment must be observed to ensure personal safety and to
prevent damage to either the instrument or equipment connected to it. If
equipment is used in a manner not specified by the manufacturer, the protection
provided by the equipment may be impaired.
Do not use this unit to directly command motors, valves, or other actuators
not equipped with safeguards. To do so, can be potentially harmful to persons
or equipment in the event of a fault to the unit.
C48T SERIES - 1/16 DIN TIMERS
MODEL C48TS - SINGLE PRESET
MODEL C48TD - DUAL PRESET
DIMENSIONS In inches (mm) PANEL CUT-OUT
UL Recognized Component,
File # E137808

D
264 www.redlion.net
SPECIFICATIONS
1. DISPLAY: 2 Line by 6 digit LCD display; Positive image reflective or
negative image transmissive with red (top line) and green (bottom line)
backlighting.
Main Display: 0.3" (7.62 mm) high digits
Secondary Display: 0.2" (5.08 mm) high digits
Annunciators:
Value: PRS, 1, and 2
Output: 01 and 02
2. POWER REQUIREMENTS:
AC Versions (C48CXXX0X):
AC Power: 85 to 250 VAC, 50/60 Hz, 9 VA max.
DC Power: 11 to 14 VDC @ 150 mA max. (Non PNP output models)
Note: Models with PNP current sourcing outputs must be powered from AC.
DC Versions (C48CXXX1X):
CONTINUOUS:
DC Power: 18 to 36 VDC; 5.5 W max.
AC Power: 24 VAC ±10%; 50/60 Hz; 7 VA max.
Note: The +10% tolerance range on AC input voltage must be strictly
adhered to. DO NOT EXCEED 26.4 VAC.
PEAK (START-UP CURRENT):
AC or DC Power: 500 mA peak start-up current for 10 msec max.
DC OUT (VSRC IN) - Terminal 10
For units which do not have PNP current sourcing outputs, this terminal
provides a DC output for sensor power (+12 VDC ±15%). The
maximum sensor current is 100 mA.
For units with PNP current sourcing outputs, this terminal serves a dual
purpose depending on the application’s PNP output voltage level and
current requirements.
1. The terminal may be used as a +12 VDC output for sensor power.
In this case, the PNP output voltage level will be +12 VDC
(±15%). A maximum of 100 mA is available for the combination
of sensor current and PNP output sourcing current.
2. If a higher PNP output voltage level or additional output sourcing
current is desired, an external DC supply may be connected
between the “DC OUT (VSRC IN)” and “COMM.” terminals. This
supply will determine the PNP output voltage level, and must be
in the range of +13 to +30 VDC.
An external DC supply can also provide the additional output
sourcing current required in applications where two or more PNP
outputs are “ON” simultaneously. However, the maximum current
rating of 100 mA per individual output must not be exceeded,
regardless of external supply capacity.
3. MEMORY: Nonvolatile E2PROM retains all programmable parameters and
timer values.
4. SENSOR POWER: +12 VDC (±15%) @ 100 mA max.
5. INPUTS: Run/Stop, Usr. In1, Usr In2, and Usr. In3.
Configurable as current sinking (active low) or current sourcing (active high)
inputs via a single plug jumper.
Current Sinking (active low): VIL = 1.5 VDC max, 22 KΩpull-up to 5
VDC.
Current Sourcing (active high): VIH = 3.5 VDC min., VIN max = 30 VDC;
22 KΩpull-down.
Run/Stop Response Time: 250 μsec max.
User Input Response Time: 5 msec max.
6. TIME ACCURACY: ±0.01%
7. OUTPUTS: (Output type and quantity are model dependent)
Solid-State:
NPN Open Collector: ISNK = 100 mA max. @ VOL = 1.1 VDC max; VOH
= 30 VDC max.
PNP Open Collector: ISRC = 100 mA max.(See note); VOH = 12 VDC
±15% (using internal supply); VOH = 13 to 30 VDC (using external
supply).
Note: The internal supply of the C48T can provide a total of 100 mA for
the combination of sensor current and PNP output sourcing current.
The supply voltage is +12 VDC (±15%), which will be the PNP output
voltage level when using only the internal supply.
If additional PNP output sourcing current or a higher output voltage
level is desired, an external DC supply may be connected between the
“DC Out/In” and “Comm.” terminals. This supply will determine the
PNP output voltage level, and must be in the range of +13 to +30 VDC.
An external supply can provide the additional output sourcing current
required in applications where two or more outputs are “ON”
simultaneously. However, the maximum rating of 100 mA per individual
output must not be exceeded, regardless of external supply capacity.
Relay: Form A contact, Rating = 5 A @ 250 VAC, 30 VDC (resistive load),
1/10 HP @ 120 VAC (inductive load)
Relay Life Expectancy: 100,000 cycles min. at max. load rating
Programmable Timed Output(s): User selectable output time resolution
0.01 Second Resolution: 0.01 to 99.99 seconds, ± 0.01% + 10 msec max.
0.1 Second Resolution: 0.1 to 999.9 Seconds, ± 0.01% + 100 msec max.
8. RS485 SERIAL COMMUNICATIONS (Optional): Up to 32 units can be
connected.
Baud Rate: Programmable from 1200 to 9600 baud
Address: Programmable from 0 to 99
Data Format: 10 Bit Frame, 1 start bit, 7 or 8 data bits, 1 or No Parity bit,
and 1 stop bit
Parity: Programmable for Odd (7 data bits), Even (7 data bits), or None (8
data bits)
9. CERTIFICATIONS AND COMPLIANCES:
UL Recognized Component, File #E137808
Recognized to U.S. and Canadian requirements under the Component
Recognition Program of Underwriters Laboratories, Inc.
ELECTROMAGNETIC COMPATIBILITY
Notes:
AC VERSIONS
1. A power line filter, RLC#LFIL0000 or equivalent, was installed when the
unit was DC powered.
DC VERSIONS
To insure compliance with the EMC standards listed above, do not connect
any wires from the terminal(s) labeled “COMM.” to the “DC-” supply
terminal (12), when powering the unit from a DC supply.
Refer to EMC Installation Guidelines section of the manual for additional
information.
10.ENVIRONMENTAL CONDITIONS:
Operating Temperature: 0°C to 50°C
Storage Temperature: -40°C to 70°C
Operating and Storage Humidity: 85% max. relative humidity (non-
condensing) from 0°C to 50°C.
Altitude: Up to 2000 meters
11. ELECTRICAL CONNECTION: Wire clamping screw terminals.
12. CONSTRUCTION: Black plastic case with collar style panel latch. The
panel latch can be installed for horizontal or vertical stacking. Black plastic
textured bezel with clear display viewing window. Unit assembly with circuit
boards can be removed from the case without removing the case from the
panel or disconnecting the wiring. This unit is rated for NEMA 4X/IP65
indoor use. Installation Category II, Pollution Degree 2.
13. WEIGHT: 6.0 oz. (170 g)
SINGLE PRESET MODELS
The C48TS offers a choice of twelve timing ranges with eighteen different
operating modes. The unit has a solid-state output that operates in parallel with
a relay output. The solid-state output is available as an NPN or PNP open
collector transistor.
DUAL PRESET MODELS
The C48TD offers a choice of twelve timing ranges with 42 operating modes.
The unit is available with solid-state or relay outputs. The solid-state outputs are
available as NPN or PNP open collector transistors.
Enclosure class AEN 55011RF interference
Emissions to EN 50081-2
Level 3; 10 V/mENV50204Simulation of cordless telephone
150 KHz - 80 MHz
Level 3; 10 V/rms EN 61000-4-6RF conducted interference
Level 3; 2 Kv power
Level 4; 2 Kv I/OEN 61000-4-4Fast transients (burst)
80 MHz - 1 GHz
Level 3; 10 V/m EN 61000-4-3Electromagnetic RF fields
Level 3; 8 Kv air
Level 2; 4 Kv contactEN 61000-4-2Electrostatic discharge
200 Hz, 50% duty cycle
Immunity to EN 50082-2
900 MHz ± 5 MHz

D
2651-717-767-6511
Timer Range Modes - trAnGE
The timer can be configured to operate in one of 12 time ranges. The table
below shows the various ranges available with the time resolution of each
range.
MODE RANGE RESOLUTION
SEC.000 999.999 Seconds 0.001 sec
SEC.00 9999.99 Seconds 0.01 sec
SEC.0 99999.9 Seconds 0.1 sec
SEC 999999 Seconds 1 sec
n.000 999.999 Minutes 0.001 min
n.00 9999.99 Minutes 0.01 min
n.0 99999.9 Minutes 0.1 min
n.SEC 9999.59 Minutes.Seconds 1 sec
n.SEC.0 999.59.0 Minutes.Seconds.0 0.1 sec
h.n.SEC 99.59.59 Hours.Minutes.Seconds 1 sec
h.n.00 99.59.99 Hours.Minutes.00 0.01 min
h.n.0 999.59.9 Hours.Minutes.0 0.1 min
FRONT PANEL FEATURES
The C48 Timer features a dual line display. In
the normal operating mode (main display), the
timer value is shown on the top line and preset or
output time values are shown on the bottom line.
The Presets or Output time values can be
programmed to be viewable only, viewable and
changeable, or locked (not viewable) from the
main display.
In the normal operating mode, the presets and
output time values are accessible providing that
these values are not programmed for ‘L’ocked.
Values that are accessible (changeable) can be
changed immediately when viewed in the
secondary display.
USER INTERFACE/PROGRAMMING MODES
The operating modes of the C48T are programmed using the front panel
keypad. To enter the programming menu, the "key is pushed and held for 2
seconds. Within the programming menu, the "key is used to sequence through
the list of programming parameters.
PROGRAMMING MENU
DISPLAY
EntrY
trAn9E
-
-
PARAMETER DESCRIPTION
Digit or Auto Scrolling Data Entry Mode
Timer Range Modes (See Table on following page)
OPEr -Timer Operating Modes (See Table on following page)
rSt.P.uP -Reset at Power up
Ac PrS -Accessibility of Preset Values
PrESEt -Preset 1 and 2 Values
P1trAc -P1 Track P2 (C48TD only)
Ac Out -Accessibility of Output Time Values
OutrES -Output Resolution
OutPut -Output 1 and 2 Time Values
rEVOut -Reverse Output/Relay Logic
rEVAnu -Reverse Output Annunciator Logic
OutP.uP -Power up Output State
USrIn1 -User Input 1
USrIn2 -User Input 2
USrIn3 -User Input 3
USr F1 -User F1 Key
CodE -Programming/Protected Parameter Menu Code
ScroLL -Scroll Display
SErSEt -Serial Baud Rate and Parity Settings
SErAdr -Serial Unit Address
SErAbr -Abbreviate Serial Mnemonics
PrnOPt -Print Options
PrnrSt -Print and Reset Time Value
FAcSEt -Load Factory Default Settings
(RS485 option only)
FRONT PANEL KEYPAD
%- Performs user Programmed Function
- Cycles through secondary displays.
"- Enters Programming Mode or Protected Value Menu
when pushed and held for 2 seconds.
- Scrolls through programming displays.
- Enters Data Values.
- Selects next available mode in programming mode.
#- Increments digit in Digit Entry mode.
- Increments value in Auto Scrolling entry mode.
- Selects Data Entry mode for displayed data values.
$- Selects Digit to right when in Digit Entry mode.
- Decrements value in Auto Scrolling entry mode.
Program Security/Operator Accessible Values
The Program Disable Plug Jumper, Programmable Code Value, User
Input (programmed for Program Disable), and the Accessible value
parameter settings provide various levels of security against unauthorized
programming changes. The accessible value parameters provide individual
access or locking of each value.
Protected Value Menu
The Protected Value Menu allows access to selected presets and timed
output values without having them viewable or changeable from the main
display. To enter the protected menu, the "key is pressed and held, and a
programmed code value is entered.

D
266 www.redlion.net
Stop Timer at 02, Auto Reset to Zero at 02 End, 01 and 02 TimedAuto Reset to Preset 2 at 02 End, 01 off at 02, 02 Timed -- 3918
Stop Timer at 02, Auto Reset to Preset 2, 01 off at 02, 02 TimedAuto Reset to Preset 2 at 02 End, 01 and 02 Timed -- 3817
Stop Timer at 02, Auto Reset to Preset 2, 01 off at 02, 02 LatchedAuto Reset to Zero at 02 End, 01 off at 02, 02 Timed -- 3716
Stop Timer at 02, Auto Reset to Preset 2, 01 and 02 TimedAuto Reset to Zero at 02 End, 01 and 02 Timed -- 3615
Stop Timer at 02, Auto Reset to Preset 2, 01 Timed, 02 LatchedAuto Reset to Preset 2, 01 off at 02, 02 Timed -- 3514
Stop Timer at 02, Auto Reset to Preset 2, Latched OutputsAuto Reset to Preset 2, 01 and 02 Timed -- 3413
Stop Timer at 02, Auto Reset to Zero, 01 off at 02, 02 TimedAuto Reset to Zero, 01 off at 02, 02 Timed -- 3312
Stop Timer at 02, Auto Reset to Zero, 01 off at 02, 02 LatchedAuto Reset to Zero, 01 and 02 Timed -- 3211
Stop Timer at 02, Auto Reset to Zero, 01 and 02 TimedManual Reset to Preset 2, 01 off at 02, 02 Timed -- 3110
Stop Timer at 02, Auto Reset to Zero, 01 Timed, 02 LatchedManual Reset to Preset 2, 01 off at 02, 02 Latched -- 309
DUAL PRESET OPERATING MODES
Stop Timer at 02, Auto Reset to Zero, Latched OutputsManual Reset to Preset 2, 01 and 02 Timed -- 298
Stop Timer at 02, Auto Reset to Preset 2 at 02 End, 01 off at 02, 02 TimedStop Timer at 02, Manual Reset to Zero, 01 and 02 Timed
Stop Timer at 02, Manual Reset to Preset 2, 01 off at 02, 02 TimedManual Reset to Preset 2, 01 Timed, 02 Latched
--
--
4221
287
Stop Timer at 02, Auto Reset to Preset 2 at 02 End, 01 and 02 TimedStop Timer at 02, Manual Reset to Zero, 01 Timed, 02 Latched
Stop Timer at 02, Manual Reset to Preset 2, 01 off at 02, 02 LatchedManual Reset to Preset 2, Latched Outputs
--
--
4120
276
Stop Timer at 02, Auto Reset to Zero at 02 End, 01 off at 02, 02 TimedStop Timer at 02, Manual Reset to Zero, Latched Outputs
Stop Timer at 02, Manual Reset to Preset 2, 01 and 02 TimedManual Reset to Zero, 01 off at 02, 02 Timed
--
--
4019
265
Stop Timer at 02, Manual Reset to Preset 2, 01 Timed, 02 LatchedManual Reset to Zero, 01 off at 02, 02 Latched --4
Stop Timer at 02, Manual Reset to Preset 2, Latched OutputsManual Reset to Zero, 01 and 02 Timed -- 243
Stop Timer at 02, Manual Reset to Zero, 01 off at 02, 02 TimedManual Reset to Zero, 01 Timed, 02 Latched -- 232
Stop Timer at 02, Manual Reset to Zero, 01 off at 02, 02 LatchedManual Reset to Zero, Latched Outputs -- 221
25
Stop Timer at 01, Auto Reset to Preset at 01 End, Timed Output
Stop Timer at 01, Auto Reset to Zero at 01 End, Timed Output
Stop Timer at 01, Auto Reset to Preset, Timed Output
Stop Timer at 01, Auto Reset to Preset, Latched Output
Stop Timer at 01, Auto Reset to Zero, Timed Output
Stop Timer at 01, Auto Reset to Zero, Latched Output
-18
-17
-16
-15
-14
-13
-12
-
11
-
Stop Timer at 01, Manual Reset to Preset, Timed Output
Stop Timer at 01, Manual Reset to Preset, Latched Output
Stop Timer at 01, Manual Reset to Zero, Timed Output
SINGLE PRESET OPERATING MODES
Stop Timer at 01, Manual Reset to Zero, Latched Output-9
10
Auto Reset to Preset at 01 End, Timed Output-8
Auto Reset to Zero at 01 End, Timed Output-7
Auto Reset to Preset, Timed Output-6
Auto Reset to Zero, Timed Output-5
Manual Reset to Preset, Timed Output-4
Manual Reset to Preset, Latched Output-3
Manual Reset to Zero, Timed Output-2
Manual Reset to Zero, Latched Output-1
Programmable Operating Modes - OPEr
These modes determine the operational characteristics of the timer. In the
tables, 01 and 02 refer to Output 1 and Output 2 respectively.
MULTIPLE UNIT STACKING
The C48T is designed for close spacing of multiple units. Units can be
stacked either horizontally or vertically. For vertical stacking, install the panel
latch with the screws to the sides of the unit. For horizontal stacking, the panel
latch screws should be at the top and bottom of the unit. The minimum spacing
from center line to center line of the units is 1.96" (49.8 mm). This spacing is
the same for vertical or horizontal stacking.
Note: When stacking units, provide adequate panel ventilation to ensure that the
maximum operating temperature range is not exceeded.
PANEL CUT-OUT SPACING FOR MULTIPLE UNIT STACKING.
HORIZONTAL ARRANGEMENT SHOWN.
PANEL LATCH INSTALLED FOR VERTICAL
UNIT STACKING
PANEL LATCH INSTALLED FOR
HORIZONTAL UNIT STACKING

D
2671-717-767-6511
ORDERING INFORMATION
MODEL NO. DESCRIPTION * NPN O.C.
OUTPUT(S)
RELAY
OUTPUT(S) RS485
85 to 250 VAC18-36 VDC/24VAC
1 Preset Timer, Reflective LCD Yes Yes No C48TS003C48TS013
1 Preset Timer, Backlit LCD Yes Yes No C48TS103C48TS113
2 Preset Timer, Reflective LCD No Yes No C48TD002C48TD012
2 Preset Timer, Reflective LCD No Yes Yes C48TD007C48TD017
C48T 2 Preset Timer, Reflective LCD Yes No Yes C48TD005N/A
2 Preset Timer, Backlit LCD No Yes No C48TD102C48TD112
2 Preset Timer, Backlit LCD No Yes Yes C48TD107C48TD117
2 Preset Timer, Backlit LCD Yes No Yes C48TD105N/A
RBC48 RBC48003YesNoNoDual Preset
RBC48001YesNoYesSingle Preset
PART NUMBER
RELAY
OUTPUT(S)
PNP O.C.
OUTPUT
NPN O.C.
OUTPUT
DESCRIPTIONMODEL NO.
RELAY OUTPUT BOARDS
ONE SHOT TIMING CYCLE
Proper wash down mixture for a food processing plant is an important
factor in maintaining the clean environment required. A disinfectant solution
is added to the mixing/holding tank used for the wash down cycle. When the
holding tank is near empty, a level transducer activates the filler pump. A
C48TS is used to turn on the disinfectant solution pump for a preprogrammed
amount of time during the filling process of the holding tank.
When the filler pump starts, a momentary contact closure activates User
Input 1, resetting the C48 Timer. The timer begins the timing cycle since the
run terminal is connected to common. The normally open relay contacts close
at the timer reset signal activating the disinfectant solution pump. When the
programmed preset is reached, timing stops and the relay deactivates, turning
off the pump controlling the disinfectant solution. The C48 Timer’s preset
cycle time may be changed according to the manufacturer’s concentration
level of the disinfectant.
PROGRAMMING
EntrY Auto Sc
trAnGE nSEC (min & sec)
OPEr 09
rStP.uP no
Ac PrS -Y (yes)
PrESEt xxxx.xx
rEVOut -Y (yes)
rEVAnu -n (no)
OutP.uP -F (off)
USrIn1 rSt-E
USrIn2 Pro.diS
USrIn3 ChgdSP
UsrF1 rSt-E
CodE xxxx
ScroLL no
APPLICATION
PART NUMBERS FOR AVAILABLE
SUPPLY VOLTAGES
ACCESSORIES
MODEL DESCRIPTION PART NUMBER
SFC48 SFC48PC Configuration Software for Windows 3.x and 95 (3.5"disk) (for RS-485 Models)
* PNP O.C. output(s) versions are available, contact the factory.

D
268 www.redlion.net
z6-DIGIT 0.56" RED SUNLIGHT READABLE DISPLAY
z4 SEPARATE DISPLAYS (Timer, Counter, Real-Time Clock, and Date)
zCYCLE COUNTING CAPABILITY
zPROGRAMMABLE FUNCTION KEYS/USER INPUTS
zFOUR SETPOINT ALARM OUTPUTS (W/Plug-in card)
zCOMMUNICATIONS AND BUS CAPABILITIES (W/Plug-in card)
zBUS CAPABILITIES: DEVICENET, MODBUS and PROFIBUS-DP
zCRIMSON®PROGRAMMING SOFTWARE
zNEMA 4X/IP65 SEALED FRONT BEZEL
GENERAL DESCRIPTION
The PAXTM (PAX®Timer) and PAXCK (PAX®Clock/Timer) offer many
features and performance capabilities to suit a wide range of industrial
applications. Both can function as an Elapsed Timer or Preset Timer, while the
PAXCK also offers Real-Time Clock with Date capability. The Plug-in option
cards allow the opportunity to configure the meter for the present application,
while providing easy upgrades for future needs.
Both units can function as an Elapsed Time Indicator. By using two separate
signal inputs and 23 selectable timer ranges, the meters can be programmed to
meet most any timing application. With the addition of a Plug-in Setpoint card,
they can easily become a dual or quad output preset timer.
The PAXCK can also operate as a Real-Time Clock (RTC), with the Real-
Time Clock Card already installed. The meter is capable of displaying time in
12 or 24-hour time formats. The 12-hour format can be displayed in hours and
minutes, with or without an AM/PM indication or in hours, minutes, and
seconds. The 24-hour format can be displayed in hours and minutes or in hours,
minutes, and seconds. The PAXCK is also capable of a calendar display in
which the day, month and/or year can be displayed. The meter will recognize
leap years, and can automatically adjust for Daylight Savings Time. The Real-
Time Clock has the ability to externally synchronize with other PAXCK meters
to provide a uniform display network throughout the plant.
If the application calls for both a Preset Timer and a Real-Time Clock at the
same time, the PAXCK can handle this requirement as well. The meter provides
up to four different displays, accessed via front panel push buttons or external
inputs. The displays are Timer (TMR), which displays the current timer value;
Count (CNT), which displays the current cycle counter value; Date (DAT),
which displays the current programmed date; and Real-Time Clock, which
displays the current time. A battery-backed Real-Time Clock plug-in card is
provided with the PAXCK. This card, which includes a lithium coin-cell battery,
will maintain the time and date when main power is removed.
The meters accept inputs from a variety of sources including switch contacts
and outputs from CMOS or TTL circuits. The input can be configured to trigger
on the edge or level of the incoming pulse. Internal jumpers are available to allow
the selection for sinking inputs (active low) or sourcing inputs (active high).
The front panel keys and three user inputs are programmable to perform
various meter functions. One of the functions includes exchanging parameter
lists, allowing for two separate listings of setpoint values, timer start/stop
values, counter start/stop values and RTC daily on and off values.
The meters can have up to four setpoint outputs, determined by the optional
plug-in cards. The setpoint plug-in cards provide dual FORM-C relays (5A),
quad FORM-A relays (3A) or either quad sinking or quad sourcing open
collector logic outputs. The outputs can be assigned to the timer, counter, RTC
date, and RTC time. The outputs can also be independently configured to suit a
variety of control and alarm requirements.
Plug-in cards can also provide serial communications. These include RS232,
RS485, Modbus, DeviceNet, and Profibus-DP. Display values, setpoint alarm
values and setpoint states can be controlled through serial communications.
With the RS232 or RS485 communication card installed, it is possible to
configure the meter using a Windows®based program. The meter configuration
data can be saved to a file for later recall.
Once the meters have been initially configured, the parameter list may be
locked out from further modification entirely, or the setpoint, timer start/stop
values, counter start/stop values, RTC time SET, and Display Intensity can be
made accessible. This lockout is possible through a security code or user input.
The meters have been specifically designed for harsh industrial environments.
With a NEMA 4X/IP65 sealed bezel and extensive testing to meet CE
requirements, the meter provides a tough yet reliable application solution.
SAFETY SUMMARY
All safety related regulations, local codes and instructions that appear in this
literature or on equipment must be observed to ensure personal safety and to
prevent damage to either the instrument or equipment connected to it. If
equipment is used in a manner not specified by the manufacturer, the protection
provided by the equipment may be impaired.
Do not use this unit to directly command motors, valves, or other actuators
not equipped with safeguards. To do so can be potentially harmful to persons or
equipment in the event of a fault to the unit.
MODEL PAX-1/8 DIN PRESET TIMER (PAXTM) &
REAL-TIME CLOCK (PAXCK)
CAUTION: Risk of Danger.
Read complete instructions prior to
installation and operation of the unit.
CAUTION: Risk of electric shock.
DIMENSIONS In inches (mm) Note: Recommended minimum clearance (behind the panel) for mounting
clip installation is 2.1" (53.4) H x 5" (127) W.
C
C
US LISTED
US LISTED
UL
R
IND. CONT. EQ.
51EB

D
2691-717-767-6511
Ordering Information . . . . . . . . . . . . . . . . . . . 2
General Meter Specifications. . . . . . . . . . . . . 3
Optional Plug-In Cards and Accessories . . . . 4
Installing the Meter . . . . . . . . . . . . . . . . . . . . 5
Setting the Jumpers . . . . . . . . . . . . . . . . . . . 5
Installing Plug-In Cards . . . . . . . . . . . . . . . . . 6
Wiring the Meter . . . . . . . . . . . . . . . . . . . . . . 6
Reviewing the Front Buttons and Display . . . 9
Programming the Meter . . . . . . . . . . . . . . . 10
Factory Service Operations . . . . . . . . . . . . . 25
Programming Overview. . . . . . . . . . . . . . . . 28
TABLE OFCONTENTS
ORDERING INFORMATION
Meter Part Numbers
Option Card and Accessories Part Numbers
SFCRD200
PAXCDC40
PAXCDC4C
PAXCDC50
PAXRTC00
Crimson®2 PC Configuration Software for Windows 98, ME, 2000 and XP
Modbus Communications Card
Extended Modbus Communications Card with Dual RJ11 Connector
Profibus-DP Communications Card
Real-Time Clock Card (Replacement Only)
SFCRD*
PAXRTC
Accessories
PAXCDC20RS232 Serial Communications Output Card with Terminal Block
Optional
Plug-In
Cards
PAXCDC30
PAXCDC2C
DeviceNet Communications Card (Terminal Block)
Extended RS232 Serial Communications Output Card with 9 Pin D Connector
PAXCDC1C
PAXCDC10RS485 Serial Communications Output Card with Terminal Block
PAXCDC
PAXCDS40Quad Setpoint Sourcing Open Collector Output Card
PAXCDS30Quad Setpoint Sinking Open Collector Output Card
PAXCDS20Quad Setpoint Relay Output Card
TYPE
PAXCDS10Dual Setpoint Relay Output Card
PAXCDS
PART NUMBERSDESCRIPTIONMODEL NO.
PAX 0
CK - Timer/Real Time Clock
0 - Red, Sunlight Readable Display
1 - Green Display
0 - 85 to 250 VAC
1 - 11 to 36 VDC, 24 VAC
TM - Timer
*Crimson®software is available for download from http://www.redlion.net/
Extended RS485 Serial Communications Output Card with Dual RJ11 Connector

D
270 www.redlion.net
GENERAL METER SPECIFICATIONS
1. DISPLAY: 6 digit, 0.56" (14.2 mm) red sunlight readable or standard green
LED
2. POWER:
AC Versions (PAXCK000, PAXTM000):
AC Power: 85 to 250 VAC, 50/60 Hz, 18 VA
Isolation: 2300 Vrms for 1 min. to all inputs and outputs. (300 V working)
DC Versions (PAXCK010, PAXTM010):
DC Power: 11 to 36 VDC, 14 W
(Derate operating temperature to 40°C if operating <15 VDC and three
Plug-in cards are installed)
AC Power: 24 VAC, ± 10%, 50/60 Hz, 15 VA
Isolation: 500 Vrms for 1 min. to all inputs and outputs (50 V working)
3. SENSOR POWER: 12 VDC, ±10%, 100 mA max. Short circuit protected.
4. ANNUNCIATORS:
5. KEYPAD: 3 programmable function keys, 5 keys total.
6. TIMER DISPLAY:
Timer Range: 23 Selectable Ranges
Timing Accuracy: ± 0.01%
Minimum Digit Resolution: 0.001 Sec.
Maximum Least Significant Digit Resolution: 1 Hr.
Maximum Display: 999999
7. CYCLE COUNTER DISPLAY:
Counter Range: 0 to 999999
Digit Resolution: 1 cycle
Maximum Count Rate: 50 Hz
8. REAL-TIME/DATE DISPLAY (PAXCK):
Real-Time Display: 5 display formats
Hr/Min/Sec (12 or 24 Hr. format); Hr/Min (24 Hr.); Hr/Min (12 Hr. with
or without AM/PM indication)
Date Display: 7 display formats
Month/Day or Day/Month (numeric or 3-letter Month format);
Month/Day/Year or Day/Month/Year (all numeric);
Day of Week/Day (3-letter Day of Week format)
9. REAL-TIME CLOCK CARD: Field replaceable plug-in card
Time Accuracy: ± 5 secs./Month (1 min./year) with end-user calibration
Battery: Lithium 2025 coin cell
Battery Life Expectancy: 10 yrs. typical
Synchronization Interface: Two-wire multi-drop network (RS485 hardware),
32 units max., operates up to 4000 ft.
Isolation To Timer & User Input Commons: 500 Vrms for 1 min.
Working Voltage: 50 V. Not isolated from all other commons.
10. TIMER INPUTS A and B:
Logic inputs configurable as Current Sinking (active low) or Current
Sourcing (active high) via a single plug jumper.
Current Sinking (active low): VIL = 0.9 V max., 22KΩpull-up to +12 VDC.
Current Sourcing (active high): VIH = 3.6 V min., 22KΩpull-down, Max.
Continuous Input: 30 VDC.
Timer Input Pulse Width: 1 msec min.
Timer Start/Stop Response Time: 1 msec max.
Filter: Software filtering provided for switch contact debounce. Filter
enabled or disabled through programming.
If enabled, filter results in 50 msec start/stop response time for successive
pulses on the same input terminal.
11. USER INPUTS: Three programmable user inputs
Logic inputs configurable as Current Sinking (active low) or Current
Sourcing (active high) through a single plug jumper.
Current Sinking (active low): VIL = 0.9 V max., 22KΩpull-up to +12 VDC.
Current Sourcing (active high): VIH = 3.6 V min., 22KΩpull-down, Max.
Continuous Input: 30 VDC.
Isolation To Timer Input Common: Not isolated
Response Time: 10 msec
12. MEMORY: Non-volatile E2PROM retains all programming parameters and
display values.
13. ENVIRONMENTAL CONDITIONS:
Operating Temperature Range: 0 to 50°C (0 to 45°C with all three plug-in
cards installed)
Storage Temperature Range: -40 to 60°C
Operating and Storage Humidity: 0 to 85% max. RH non-condensing
Vibration According to IEC 68-2-6: Operational 5 to 150 Hz, in X, Y, Z
direction for 1.5 hours, 2 g’s.
Shock According to IEC 68-2-27: Operational 25 g (10g relay), 11 msec in 3
directions.
Altitude: Up to 2000 meters
14. CERTIFICATIONS AND COMPLIANCE:
SAFETY
UL Recognized Component, File # E179259, UL61010A-1, CSA C22.2
No. 61010-1
Recognized to U.S. and Canadian requirements under the Component
Recognition Program of Underwriters Laboratories, Inc.
UL Listed, File # E137808, UL508, CSA C22.2 No. 14-M95
LISTED by Und. Lab. Inc. to U.S and Canadian safety standards
Type 4X Enclosure rating (Face only), UL50
IECEE CB Scheme Test Certificate # US/8843A/UL
CB Scheme Test Report # 04ME11209-20041018
Issued by Underwriters Laboratories, Inc.
IEC 61010-1, EN 61010-1: Safety requirements for electrical
equipment for measurement, control, and laboratory use, Part 1.
IP65 Enclosure rating (face only), IEC 529
IP20 Enclosure rating (rear of unit), IEC 529
ELECTROMAGNETIC COMPATIBILITY
Note:
Refer to the EMC Installation Guidelines section for more information.
15. CONNECTIONS: High compression, cage-clamp terminal block
Wire Strip Length: 0.3" (7.5 mm)
Wire Gage: 30-14 AWG copper wire
Torque: 4.5 inch-lbs (0.51 N-m) max.
16. CONSTRUCTION: This meter is rated for NEMA 4X/IP65 outoor use.
IP20 Touch safe. Installation Category II, Pollution Degree 2. One piece
bezel/case. Flame resistant. Synthetic rubber keypad. Panel gasket and
mounting clip included.
17. WEIGHT: 10.1 oz. (286 g)
Power mains class B
Enclosure class BEN 55022RF interference
Emissions to EN 50081-1
150 KHz - 80 MHz
Level 3; 10 V/rms EN 61000-4-6RF conducted interference
Level 3; 2 Kv power
Level 4; 2 Kv I/OEN 61000-4-4Fast transients (burst)
80 MHz - 1 GHz
Level 3; 10 V/m EN 61000-4-3Electromagnetic RF fields
Level 3; 8 Kv airEN 61000-4-2Electrostatic discharge
Immunity to EN 50082-2
Setpoint 4 OutputSP4 -
Setpoint 3 OutputSP3 -
Setpoint 2 OutputSP2 -
Setpoint 1 OutputSP1 -
Real-Time Clock Time Display-
Real-Time Clock Date DisplayDAT -
Cycle Counter DisplayCNT -
Timer DisplayTMR -

D
2711-717-767-6511
OPTIONAL PLUG-IN CARDS AND ACCESSORIES
WARNING: Disconnect all power to the unit before
installing Plug-in cards.
Adding Option Cards
The PAX and MPAX series meters can be fitted with up to three optional plug-
in cards. The details for each plug-in card can be reviewed in the specification
section below. Only one card from each function type can be installed at one time.
The function types include Setpoint Alarms (PAXCDS), Communications
(PAXCDC), and Real-Time Clock Card (PAXRTC). The plug-in cards can be
installed initially or at a later date.
COMMUNICATION CARDS (PAXCDC)
A variety of communication protocols are available for the PAX and MPAX
series. Only one of these cards can be installed at a time. When programming
the unit via RLCPro, a Windows®based program, the RS232 or RS485 Cards
must be used.
SERIAL COMMUNICATIONS CARD
Type: RS485 or RS232
Isolation To Sensor & User Input Commons: 500 Vrms for 1 min.
Working Voltage: 50 V. Not Isolated from all other commons.
Data: 7/8 bits
Baud: 300 to 19,200
Parity: No, Odd or Even
Bus Address: Selectable 0 to 99, Max. 32 meters per line (RS485)
Transmit Delay: Selectable for 2 to 50 msec or 50 to 100 msec (RS485)
DEVICENET™ CARD
Compatibility: Group 2 Server Only, not UCMM capable
Baud Rates: 125 Kbaud, 250 Kbaud, and 500 Kbaud
Bus Interface: Phillips 82C250 or equivalent with MIS wiring protection per
DeviceNet™ Volume I Section 10.2.2.
Node Isolation: Bus powered, isolated node
Host Isolation: 500 Vrms for 1 minute (50 V working) between DeviceNet™
and meter input common.
MODBUS CARD
Type: RS485; RTU and ASCII MODBUS modes
Isolation To Sensor & User Input Commons: 500 Vrms for 1 minute.
Working Voltage: 50 V. Not isolated from all other commons.
Baud Rates: 300 to 38,400.
Data: 7/8 bits
Parity: No, Odd, or Even
Addresses: 1 to 247.
Transmit Delay: Programmable; See Transmit Delay explanation.
PROFIBUS-DP CARD
Fieldbus Type: Profibus-DP as per EN 50170, implemented with Siemens
SPC3 ASIC
Conformance: PNO Certified Profibus-DP Slave Device
Baud Rates: Automatic baud rate detection in the range 9.6 Kbaud to 12 Mbaud
Station Address: 0 to 126, set by the master over the network. Address stored
in non-volatile memory.
Connection: 9-pin Female D-Sub connector
Network Isolation: 500 Vrms for 1 minute (50 V working) between Profibus
network and sensor and user input commons. Not isolated from all other
commons.
SETPOINT CARDS (PAXCDS)
The PAX and MPAX series has 4 available setpoint alarm output plug-in
cards. Only one of these cards can be installed at a time. (Logic state of the
outputs can be reversed in the programming.) These plug-in cards include:
PAXCDS10 - Dual Relay, FORM-C, Normally open & closed
PAXCDS20 - Quad Relay, FORM-A, Normally open only
PAXCDS30 - Isolated quad sinking NPN open collector
PAXCDS40 - Isolated quad sourcing PNP open collector
DUAL RELAY CARD
Type: Two FORM-C relays
Isolation To Timer & User Input Commons: 2300 Vrms for 1 min.
Working Voltage: 240 Vrms
Contact Rating:
One Relay Energized: 5 amps @ 120/240 VAC or 28 VDC (resistive load),
1/8 HP @120 VAC, inductive load
Total current with both relays energized not to exceed 5 amps
Life Expectancy: 100 K cycles min. at full load rating. External RC snubber
extends relay life for operation with inductive loads
Response Time: 5 msec. nominal with 3 msec. nominal release
Timed Output Accuracy: ±0.01% -10 msec.
QUAD RELAY CARD
Type: Four FORM-A relays
Isolation To Timer & User Input Commons: 2300 Vrms for 1 min.
Working Voltage: 250 Vrms
Contact Rating:
One Relay Energized: 3 amps @ 250 VAC or 30 VDC (resistive load), 1/10
HP @ 120 VAC, inductive load
Total current with all four relays energized not to exceed 4 amps
Life Expectancy: 100K cycles min. at full load rating. External RC snubber
extends relay life for operation with inductive loads
Response Time: 5 msec. nominal with 3 msec. nominal release
Timed Output Accuracy: ±0.01% -10 msec.
QUAD SINKING OPEN COLLECTOR CARD
Type: Four isolated sinking NPN transistors.
Isolation To Timer & User Input Commons: 500 Vrms for 1 min.
Working Voltage: 50 V. Not Isolated from all other commons.
Rating: 100 mA max @ VSAT = 0.7 V max. VMAX = 30 V
Response Time: 400 μsec. nominal with 2 msec. nominal turnoff
Timed Output Accuracy: ±0.01% -10 msec.
QUAD SOURCING OPEN COLLECTOR CARD
Type: Four isolated sourcing PNP transistors.
Isolation To Timer & User Input Commons: 500 Vrms for 1 min.
Working Voltage: 50 V. Not Isolated from all other commons.
Rating: Internal supply: 24 VDC ± 10% , 30 mA max. total
External supply: 30 VDC max., 100 mA max. each output
Response Time: 400 μsec. nominal with 2 msec. nominal turnoff
Timed Output Accuracy: ±0.01% -10 msec.
PROGRAMMING SOFTWARE
The Crimson®software is a Windows®based program that allows
configuration of the PAX®meter from a PC. Crimson offers standard drop-down
menu commands, that make it easy to program the meter. The meter’s program
can then be saved in a PC file for future use. A PAX®serial plug-in card is
required to program the meter using the software.
PAXCDC50 - Profibus-DP
PAXCDC4C - Modbus (Connector)
PAXCDC40 - Modbus (Terminal)
PAXCDC30 - DeviceNetPAXCDC10 - RS485 Serial (Terminal)
PAXCDC1C - RS485 Serial (Connector)
PAXCDC20 - RS232 Serial (Terminal)
PAXCDC2C - RS232 Serial (Connector)

D
272 www.redlion.net
Installation
The meter meets NEMA 4X/IP65 requirements for indoor use when properly
installed. The meter is intended to be mounted into an enclosed panel. Prepare
the panel cutout to the dimensions shown. Remove the panel latch from the
meter. Slide the panel gasket over the
rear of the meter to the back of the
bezel. The meter should be
installed fully assembled.
Insert the meter into the
panel cutout.
While holding the meter in place, push the panel latch over the rear of the
meter so that the tabs of the panel latch engage in the slots on the case. The
panel latch should be engaged in the farthest forward slot possible. To achieve
a proper seal, tighten the latch screws evenly until the meter is snug in the panel
(Torque to approximately 7 in-lbs [79N-cm]). Do not over-tighten the screws.
Installation Environment
The meter should be installed in a location that does not exceed the operating
temperature and provides good air circulation. Placing the meter near devices
that generate excessive heat should be avoided.
The bezel should only be cleaned with a soft cloth and neutral soap product.
Do NOT use solvents. Continuous exposure to direct sunlight may accelerate
the aging process of the bezel.
Do not use tools of any kind (screwdrivers, pens, pencils, etc.) to operate the
keypad of the meter.
PANEL CUT-OUT
1.0 INSTALLING THE METER
2.0 SETTING THE JUMPERS
To access the jumpers, remove the meter base from the meter case by firmly
squeezing and pulling back on the side rear finger tabs. This should lower the
latch below the case slot (which is located just in front of the finger tabs). It is
recommended to release the latch on one side, then start the other side latch.
Warning: Exposed line voltage exists on the circuit boards. Remove
all power to the meter and load circuits before accessing inside of
the meter.
Timer Input Logic Jumper
One jumper is used for the logic state of both timer inputs. Select the proper
position to match the input being used.
User Input Logic Jumper
One jumper is used for the logic state of all user inputs. If the user inputs are
not used, it is not necessary to check or move this jumper.
JUMPER SELECTIONS
The indicates factory setting.
Main
Circuit
Board
USER
INPUT
JUMPER
SRC
SNK
TIMER
INPUT
JUMPER
SRC
SNK

D
2731-717-767-6511
3.0 INSTALLING PLUG-INCARDS
The Plug-in cards are separately purchased optional cards that perform
specific functions. These cards plug into the main circuit board of the meter. The
Plug-in cards have many unique functions when used with the meters.
CAUTION: The Plug-in card and main circuit board contain static
sensitive components. Before handling the cards, discharge static
charges from your body by touching a grounded bare metal
object. Ideally, handle the cards at a static controlled clean
workstation. Also, only handle the cards by the edges. Dirt, oil or
other contaminants that may contact the cards can adversely
affect circuit operation.
To Install:
1. With the case open, locate the Plug-in card connector for the card type to be
installed. The types are keyed by position with different main circuit board
connector locations. When installing the card, hold the meter by the rear
terminals and not by the front display board.*
2. Install the Plug-in card by aligning the card terminals with the slot bay in the
rear cover. Be sure the connector is fully engaged and the tab on the Plug-in
card rests in the alignment slot on the display board.
3. Slide the meter base back into the case. Be sure the rear cover latches fully
into the case.
4. Apply the Plug-in card label to the bottom side of the meter. Do Not Cover
the vents on the top surface of the meter. The surface of the case must be
clean for the label to adhere properly. Apply the label to the area designated
by the large case label.
TOP VIEW
Quad Sourcing Open Collector Output Card Supply Select
* If installing the Quad sourcing Plug-in Card (PAXCDS40), set the jumper for
internal or external supply operation before continuing.
WIRING OVERVIEW
Electrical connections are made via screw-clamp terminals located on the
back of the meter. All conductors should conform to the meter’s voltage and
current ratings. All cabling should conform to appropriate standards of good
installation, local codes and regulations. It is recommended that the power
supplied to the meter (DC or AC) be protected by a fuse or circuit breaker.
When wiring the meter, compare the numbers embossed on the back of the
meter case against those shown in wiring drawings for proper wire position.
Strip the wire, leaving approximately 0.3" (7.5 mm) bare lead exposed (stranded
wires should be tinned with solder.) Insert the lead under the correct screw-
clamp terminal and tighten until the wire is secure. (Pull wire to verify
tightness.) Each terminal can accept up to one #14 AWG (2.55 mm) wire, two
#18 AWG (1.02 mm), or four #20 AWG (0.61 mm).
EMC INSTALLATION GUIDELINES
Although this meter is designed with a high degree of immunity to Electro-
Magnetic Interference (EMI), proper installation and wiring methods must be
followed to ensure compatibility in each application. The type of the electrical
noise, source or coupling method into the meter may be different for various
installations. The meter becomes more immune to EMI with fewer I/O
connections. Cable length, routing, and shield termination are very important
and can mean the difference between a successful or troublesome installation.
Listed below are some EMC guidelines for successful installation in an
industrial environment.
1. The meter should be mounted in a metal enclosure, which is properly
connected to protective earth.
2. Use shielded (screened) cables for all Signal and Control inputs. The shield
(screen) pigtail connection should be made as short as possible. The
connection point for the shield depends somewhat upon the application.
Listed below are the recommended methods of connecting the shield, in order
of their effectiveness.
a. Connect the shield only at the panel where the unit is mounted to earth
ground (protective earth).
b. Connect the shield to earth ground at both ends of the cable, usually when
the noise source frequency is above 1 MHz.
c. Connect the shield to common of the meter and leave the other end of the
shield unconnected and insulated from earth ground.
3. Never run Signal or Control cables in the same conduit or raceway with AC
power lines, conductors feeding motors, solenoids, SCR controls, and
heaters, etc. The cables should be ran in metal conduit that is properly
grounded. This is especially useful in applications where cable runs are long
and portable two-way radios are used in close proximity or if the installation
is near a commercial radio transmitter.
4. Signal or Control cables within an enclosure should be routed as far as possible
from contactors, control relays, transformers, and other noisy components.
5. In extremely high EMI environments, the use of external EMI suppression
devices, such as ferrite suppression cores, is effective. Install them on Signal
and Control cables as close to the unit as possible. Loop the cable through the
core several times or use multiple cores on each cable for additional protection.
Install line filters on the power input cable to the unit to suppress power line
interference. Install them near the power entry point of the enclosure. The
following EMI suppression devices (or equivalent) are recommended:
Ferrite Suppression Cores for signal and control cables:
Fair-Rite # 0443167251 (RLC# FCOR0000)
TDK # ZCAT3035-1330A
Steward # 28B2029-0A0
Line Filters for input power cables:
Schaffner # FN610-1/07 (RLC# LFIL0000)
Schaffner # FN670-1.8/07
Corcom # 1 VR3
Note: Reference manufacturer’s instructions when installing a line filter.
6. Long cable runs are more susceptible to EMI pickup than short cable runs.
Therefore, keep cable runs as short as possible.
7. Switching of inductive loads produces high EMI. Use of snubbers across
inductive loads suppresses EMI.
Snubber: RLC# SNUB0000.
4.0 WIRING THE METER

D
274 www.redlion.net
Before connecting the wires, the Timer Input logic jumper should be verified for proper position.
4.2 TIMER INPUT WIRING
CAUTION: Timer Input common is NOT isolated from User Input common. In order to preserve the safety of the meter application, the timer input
common must be suitably isolated from hazardous live earth referenced voltage; or input common must be at protective earth ground potential. If not,
hazardous voltage may be present at the User Inputs and User Input Common terminals. Appropriate considerations must then be given to the potential
of the User Input Common with respect to earth ground; and the common of the isolated plug-in cards with respect to input common.
Two Wire Proximity, Current Source Current Sourcing Output
Interfacing With TTL
Current Sinking Output
Switch or Isolated Transistor; Current Sink Switch or Isolated Transistor; Current Source
Emitter Follower; Current Source
4.1 POWER WIRING
AC Power
Terminal 1: VAC
Terminal 2: VAC
DC Power
Terminal 1: +VDC
Terminal 2: -VDC
4.3 USER INPUT WIRING
Before connecting the wires, the Timer Input logic jumper should be verified for proper position. When the user input is configured for cycle
count, in module 4, the count input should be wired between terminals 7 & 10.
Sourcing Logic
Terminals 7-9:
+ VDC through external switching device
Terminal 10:
-VDC through external switching device
The user inputs of the meter are internally
pulled down to 0 V with 22 KΩresistance.
The input is active when a voltage greater
than 3.6 VDC is applied.
Sinking Logic
Terminals 7-9
Terminal 10
The user inputs of the meter are internally
pulled up to +12 V with 22 KΩresistance.
The input is active when it is pulled low
(<0 .9 V).
Connect external switching device between the
appropriate User Input terminal and User Comm.
}

D
2751-717-767-6511
4.4 SETPOINT (ALARMS) WIRING
SETPOINT PLUG-IN CARD TERMINALS
SINKING OUTPUT LOGIC CARD
SOURCING OUTPUT LOGIC CARD
4.5 SERIAL COMMUNICATION WIRING
RS232 Communications
RS232 is intended to allow two devices to communicate over distances up to
50 feet. Data Terminal Equipment (DTE) transmits data on the Transmitted Data
(TXD) line and receives data on the Received Data (RXD) line. Data Computer
Equipment (DCE) receives data on the TXD line and transmits data on the RXD
line. The PAX emulates a DTE. If the other device connected to the meter also
emulates a DTE, the TXD and RXD lines must be interchanged for
communications to take place. This is known as a null modem connection. Most
printers emulate a DCE device while most computers emulate a DTE device.
Some devices cannot accept more than two or three characters in succession
without a pause in between. In these cases, the meter employs a busy function.
As the meter begins to transmit data, the RXD line (RS232) is monitored to
determine if the receiving device is “busy”. The receiving device asserts that it
is busy by setting the RXD line to a space condition (logic 0). The meter then
suspends transmission until the RXD line is released by the receiving device.
RS485 Communications
The RS485 communication standard allows the connection of up to 32
devices on a single pair of wires, distances up to 4,000 ft. and data rates as high
as 10M baud (the PAX is limited to 19.2k baud). The same pair of wires is used
to both transmit and receive data. RS485 is therefore always half-duplex, that is,
data cannot be received and transmitted simultaneously.
12
12
B(-)
33K
33K
33K
33K
+5V
+5V
Transmit
Transmit
Enable
Enable
PAX METER
PAX METER
RECEIVING DEVICE
RECEIVING DEVICE
A
(+)
(+)
COMM.
COMM. *
NC
NC
*
OPTIONAL
OPTIONAL
13
13
14
14
15
15
Terminal Block Connection Figure
Terminal Block Connection Figure
Extended Comms Connection Figure
Extended Comms Connection Figure

D
276 www.redlion.net
Time synchronization between multiple
PAXCK meters can be accomplished through a
hardware interface on the Real-Time Clock option
card. This RS485 type interface allows connection
of up to 32 PAXCK meters in a two-wire
multidrop network, at distances up to 4000 ft.
In a synchronization network, one PAXCK
meter is programmed as the Host, while all other
meters are programmed as Slaves. Once every
hour, the Host meter outputs a time
synchronization pulse onto the network. Upon
receiving the synchronization pulse, each Slave
meter automatically adjusts the minutes and
seconds of its RTC Time setting to synchronize
with the Host. Real-Time Clock Synchronization Figure
4.6 REAL-TIME CLOCK WIRING (PAXCK)
5.0 REVIEWING THE FRONT BUTTONS AND DISPLAY
* Cycle counter and Real-Time Clock displays are locked out in Factory Settings.
** Factory setting for the F1 and F2 keys is NO mode.
*** Factory setting for the RST key is (Reset Display)
Selects digit location in parameter valuesReset (Function key) ***RST
Decrement selected parameter value or selectionsFunction key 2; hold for 3 seconds for Second Function 2 **F2W
Increment selected parameter value or selectionsFunction key 1; hold for 3 seconds for Second Function 1 **F1V
Store selected parameter and index to next parameterAccess Programming ModePAR
Exit programming and return to Display ModeIndex display through Timer, Cycle Counter, Date, and Time DSP
PROGRAMMING MODE OPERATIONDISPLAY MODE OPERATIONKEY

D
2771-717-767-6511
PROGRAMMING MODE ENTRY (PAR KEY)
The Programming Mode is entered by pressing the PAR key. If this mode is
not accessible, then meter programming is locked by either a security code or a
hardware lock. (See Modules 2 and 3 for programming lock-out details.)
MODULE ENTRY (ARROW & PAR KEYS)
Upon entering the Programming Mode, the display alternates between
and the present module (initially ). The arrow keys (F1Sand F2T) are used
to select the desired module, which is then entered by pressing the PAR key.
PARAMETER (MODULE) MENU (PAR KEY)
Each module has a separate parameter menu. These menus are shown at the
start of each module description section which follows. The PAR key is pressed
to advance to a particular parameter to be changed, without changing the
programming of preceding parameters. After completing a module, the display
will return to . From this point, programming may continue by selecting
and entering additional modules. (See MODULE ENTRY above.)
PARAMETER SELECTION ENTRY (ARROW & PAR KEYS)
For each parameter, the display alternates between the parameter and the
present selection or value for that parameter. For parameters which have a list of
selections, the arrow keys (F1Sand F2T) are used to sequence through the list
until the desired selection is displayed. Pressing the PAR key stores and activates
the displayed selection, and also advances the meter to the next parameter.
NUMERICAL VALUE ENTRY (ARROW, RST & PAR KEYS)
For parameters which require a numerical value entry, the arrow keys can be
used to increment or decrement the display to the desired value. When an arrow
key is pressed and held, the display automatically scrolls up or scrolls down.
The longer the key is held, the faster the display scrolls.
In addition, the RST key can be used in combination with the arrow keys to
enter numerical values. The RST key is pressed to select a specific digit to be
changed, which blinks when selected. Once a digit is selected, the arrow keys
are used to increment or decrement that digit to the desired number. The RST
key is then pressed again to select the next digit to be changed. This “select and
set” sequence is repeated until each digit is displaying the proper number.
Pressing the PAR key stores and activates the displayed value, and also
advances the meter to the next parameter.
PROGRAMMING MODE EXIT (DSP KEY or PAR KEY at )
The Programming Mode is exited by pressing the DSP key (from anywhere
in the Programming Mode) or the PAR key (with displayed). This will
commit any stored parameter changes to memory and return the meter to the
Display Mode. If a parameter was just changed, the PAR key should be pressed
to store the change before pressing the DSP key. (If power loss occurs before
returning to the Display Mode, verify recent parameter changes.)
STEP BY STEP PROGRAMMING INSTRUCTIONS:
OVERVIEW
PROGRAMMING MENU
DISPLAY MODE
The meter normally operates in the Display Mode. In this mode, the meter
displays can be viewed consecutively by pressing the DSP key. The
annunciators to the left of the display indicate which display is currently shown;
Timer (TMR), Cycle Counter (CNT), or Date (DAT). The Time Display for the
Real-Time Clock is shown with no annunciator. Any of these displays can be
locked from view through programming. (See Module 3.)
PROGRAMMING MODE
Two programming modes are available.
Full Programming Mode permits all parameters to be viewed and modified.
Upon entering this mode, the front panel keys change to Programming Mode
operations. This mode should not be entered while a process is running, since
the meter timing functions and User Input response may not operate properly
while in Full Programming Mode.
Quick Programming Mode permits only certain parameters to be viewed and/or
modified. When entering this mode, the front panel keys change to
Programming Mode operations, and all meter functions continue to operate
properly. Quick Programming Mode is configured in Module 3. The Display
Intensity Level “” parameter is only available in the Quick Programming
Mode when the security code is non-zero. For a description, see Module 9—
Factory Service Operations. Throughout this document, Programming Mode
(without Quick in front) always refers to “Full” Programming Mode.
PROGRAMMING TIPS
The Programming Menu is organized into nine modules. (See above.) These
modules group together parameters that are related in function. It is
recommended to begin programming with Module 1 and proceed through each
module in sequence. Note that Modules 5 through 8 are only accessible when
the appropriate plug-in option card is installed. If lost or confused while
programming, press the DSP key to exit programming mode and start over.
When programming is complete, it is recommended to record the meter settings
on the Parameter Value Chart and lock-out parameter programming with a User
Input or lock-out code. (See Modules 2 and 3 for lock-out details.)
FACTORY SETTINGS
Factory Settings may be completely restored in Module 9. This is a good
starting point if encountering programming problems. Throughout the module
description sections which follow, the factory setting for each parameter is
shown below the parameter display. In addition, all factory settings are listed on
the Parameter Value Chart following the programming section.
ALTERNATING SELECTION DISPLAY
In the module description sections which follow, the dual display with arrows
appears for each programming parameter. This is used to illustrate the display
alternating between the parameter (top display) and the parameter’s Factory
Setting (bottom display). In most cases, selections or value ranges for the
parameter will be listed on the right.
6.0 PROGRAMMING THE METER
Indicates Program Mode Alternating Display
Factory Settings are shown.
Parameter
Selection/Value
ª
«

D
278 www.redlion.net
This parameter determines how the Timer Input Signals affect the
“Run/Stop” status of the Timer. The timing diagrams below reflect a Sinking
input setup (active low). A Sourcing input setup (active high) is available
through plug jumper selection (see Section 2.0). In this case, the logic levels of
the timing diagrams would be inverted.
The Timer can also be stopped using a Timer Stop Value or a Setpoint. This
type of Stop condition is cleared when a Timer Reset occurs, or another start
edge is applied.
For and operation, Input B provides a level active Timer
Inhibit function. This function is also available through a User Input (see
Module 2). Timing diagrams are shown below for “” through “”
modes. The “” through “” modes are identical except the
timer display value is also reset at “Time Start” edges. In the “” and
“” modes, the timer display value remains held and only updates when
a Timer Start (Input A) or Timer Stop (Input B) edge occurs.
6.1 MODULE 1 - TIMER INPUT PARAMETERS ()
PARAMETER MENU
Module 1 is the programming module for the Timer Input Parameters. In the
Display Mode, the TMR annunciator indicates the Timer display is currently
being shown. An EXCHANGE PARAMETER LISTS feature, which includes
the Timer Start and Timer Stop Values, is explained in Module 2.
ª
«
23 TIMER RANGE SELECTIONS
( = SEC; = MIN; = HR; = DAY)
TIMER RANGE
ª
«
Level Active (Gated) Operation
INPUT A
INPUT B - Timer Inhibit (Level Active)
Time
Start
Time
Stop
Time
Start
Time
Stop
Edge Triggered Operation -1 Input
INPUT A
INPUT B - Timer Inhibit (Level Active)
Time
Start
Time
Stop
Time
Start
Time
Stop
, *
, *
TIMER INPUT OPERATION
0.01 HR
0.001 HR
1 HR
0.1 HR
0.001 MIN
HOURS
0.1 MIN
0.01 MIN
MINUTES
1 MIN
0.01 SEC
0.001 SEC
1 SEC
0.1 SEC
MAXIMUM
DISPLAY
DISPLAY
RESOLUTION
RANGE
SELECTION
SECONDS
DAYS/HOURS/MINUTES
1 MIN
1 SEC
0.1 SEC
0.001 MIN
HOURS/MINUTES/SECONDS
0.1 MIN
0.01 MIN
HOURS/MINUTES
1 MIN
0.01 SEC
0.001 SEC
1 SEC
0.1 SEC
MAXIMUM
DISPLAY
DISPLAY
RESOLUTION
RANGE
SELECTION
MINUTES/SECONDS
TIMING DIRECTION
Timing direction can be reversed through a User Input. (See Module 2.)
to
ª
«
ª
«
ª
«
TIMER INPUT FILTERING
Provides a 50 msec debounce for the Timer Inputs (A and B). Select when
using relays or switch contacts as a signal source.
TIMER START VALUE
The Timer returns to this value whenever a Timer Reset occurs. The value is
entered in the same display format as the Timer Range selected. Non-zero
values are normally used for “timing down” applications, but they can also
provide an “offset” value when timing up.
Edge Triggered Operation - 2 Input
INPUT A
INPUT B
Time
Start
Time
Start
Time
Stop
Time
Stop
Edge Triggered Operation - 2 Input,
with Display Hold
INPUT A
INPUT B
Time Stop,
Display Update
Time Start,
Display Update
Time Start,
Display Update
Display
Update
, *, *
* - Timer is reset at Time Start edge.
TIMER STOP VALUE
The Timer stops when this value is reached, regardless of the signal levels on
the Timer Inputs. Selecting will display the sub-menu where the Stop
Value can be set or changed. The Stop Value is entered in the same display
format as the Timer Range selected. This Stop condition is cleared when a
Timer Reset occurs. Select if a Stop Value is not being used.
ª
«
to
ª
«
* - Timer is reset at Time Start edge.

D
2791-717-767-6511
ª
«
ª
«
NO FUNCTION
With this selection, NO function is performed. This is the factory setting for
all user inputs and function keys except the Reset (RST) Key.
PROGRAMMING MODE LOCK-OUT
Programming Mode is locked-out, as long as activated (maintained action).
In Module 3, certain parameters can be setup where they are still accessible
during Programming Mode Lock-out. A security code can be configured to
allow complete programming access during User Input lock-out. This parameter
does not apply to the function keys. Program only one user input for this function.
ª
«
ª
«
ª
«
EXCHANGE PARAMETER LISTS
Two lists of parameter entries are available for the Timer/Counter Start and
Stop Values; Setpoint On/Off and Time-Out Values; and Setpoint Daily On/Off
Occurrence (for Real-Time Clock option). The two lists are named and
. If a User Input is used to select the list, then is selected when
the User Input is in the inactive state and is selected when the User
Input is in the active state (maintained action). If a front panel Function Key is
used to select the list, then the list will toggle for each key press (momentary
action). The display will only indicate which list is active when the list is
changed or when entering any Programming Mode.
To program the values for and , first complete the
programming of all the parameters. Exit programming and switch to the other
list. Re-enter programming and enter the Timer/Counter Start and Stop Values
( , , , ), and if applicable, the Setpoint On/Off and
Time-Out Values (, , , ,,,,,
,,,), and the Setpoint Daily On/Off Occurrence
( , , , ,,,,). If any
other parameters are changed, the other list values must be reprogrammed.
Program only one user input for this function.
Note: When downloading the Crimson®program containing List A/B, make
sure that both the software and meter have the same list active. The active
list in the Crimson®program is the one being displayed in Input Setup
and/or Setpoint Alarms category.
6.2 MODULE 2 - USER INPUT AND FRONT PANEL FUNCTION KEY
PARAMETERS ()
PARAMETER MENU
Module 2 is the programming module for the rear terminal User Inputs and
front panel Function Keys.
Three rear terminal User Inputs are individually programmable to perform
specific meter control functions. While in the Display Mode, the function is
executed when the User Input transitions to the active state. Refer to the User
Input specifications for active state response times. Certain User Input functions
are disabled in “Full” Programming Mode. User Inputs should be programmed
while in the inactive state.
Three front panel Function Keys, F1, F2 and RST, are also individually
programmable to perform specific meter control functions. While in the Display
Mode, the primary function is executed when the key is pressed. Holding the
F1 or F2 Function Keys for three seconds executes a secondary function. It is
possible to program a secondary function without a primary function. The front
panel key functions are disabled in both Programming Modes.
In most cases, if more than one User Input and/or Function Key is
programmed for the same function, the maintained (level active) functions will
be performed while at least one of those User Inputs or Function Keys are
activated. The momentary (edge triggered) functions are performed every time
any of those User Inputs or Function Keys transition to the active state.
Some functions have a sublist of parameters, which appears when PAR is
pressed at the listed function. A sublist provides yes/no selection for Display
Values or Setpoints which pertain to the programmed function. The function
will only be performed on the parameters entered as Z&4 in the sublist. If a User
Input or Function Key is configured for a function with a sublist, then that
sublist will need to be scrolled through each time, in order to access any
parameters for the User Inputs or Function Keys which follow.
FLASH TIMER ANNUNCIATOR
This parameter allows the Timer annunciator (TMR) to flash when the Timer
is running or stopped/inhibited. Select if a flashing indicator is not desired.
TIMER INPUT STATE AT POWER-UP
Determines the “Run/Stop” State of the Timer at Power-up. This parameter
does not apply to timer input operation.
- Timer Stopped at power-up, regardless of prior run/stop state
- Timer assumes the same run/stop state it was in prior to power-down
ª
«
ª
«
ª
«
TIMER RESET AT POWER-UP
The Timer can be programmed to Reset at each meter power-up.

D
280 www.redlion.net
ª
«
ª
«
DISPLAY HOLD and RESET (Edge Triggered Reset)
When activated, the meter “freezes” the display values entered as in the
sublist, before performing an internal Momentary Reset on the selected
displays. This function does not apply to the RTC Time or Date displays.
Program only one user input for this function.
NO
Cycle Counter
C-dSP
NO
Timer
t-dSp
FACTORYDESCRIPTIONDISPLAY
ª
«
ª
«
DISPLAY SELECT (Level Active)
When active (maintained action), the meter continuously scrolls through all
displays that are not “locked-out” in the Display mode. (See Module 3 for
Display Lock-out details.) A sub-menu provides Scrolling Speed selection.
DISPLAY SELECT (Edge Triggered)
When activated (momentary action), the meter advances to the next display
that is not “locked-out” in the Display mode. (See Module 3 for Display Lock-
out details.)
ª
«
ª
«
ª
«
DISPLAY RESET (Level Active)
When active (maintained action), the meter continually resets only the
currently shown display. If the RTC Time or Date is displayed, this function
applies to the Outputs assigned to the RTC, and does not Reset the actual RTC
Time or Date display. (See Module 6 for details on Output Assignment and
Output Reset with Display Reset.)
ª
«
ª
«
DISPLAY RESET (Edge Triggered)
When activated (momentary action), the meter resets only the currently
shown display. This is the factory setting for the Reset (RST) key. If the RTC
Time or Date is displayed, this function applies to the Outputs assigned to the
RTC, and does not Reset the actual RTC Time or Date display. (See Module 6
for details on Output Assignment and Output Reset with Display Reset.)
ª
«
ª
«
MAINTAINED RESET (Level Active)
When active (maintained action), the meter continually resets the displays
entered as in the sublist. The sublist appears when the PAR key is pressed.
This function does not apply to the RTC Time or Date displays.
NO
Cycle Counter
C-dSP
NO
Timer
t-dSp
FACTORYDESCRIPTIONDISPLAY
ª
«
ª
«
MOMENTARY RESET (Edge Triggered)
When activated (momentary action), the meter resets the displays entered as
in the sublist. Function does not apply to RTC Time or Date displays.
ª
«
ª
«
DISPLAY HOLD (Level Active)
When active (maintained action), the meter “freezes” the display values
entered as in the sublist, while normal meter operation continues internally.
Program only one user input for this function.
NO
Cycle Counter
C-dSP
NO
Timer
t-dSp
FACTORYDESCRIPTIONDISPLAY
NO
RTC Time
rtC-t
NO
RTC Date
rtC-d
NO
Cycle Counter
C-dsp
NO
Timer
t-dsp
FACTORYDESCRIPTIONDISPLAY
ª
«
ª
«
DISPLAY HOLD and RESET (Level Active Reset)
When activated, the meter “freezes” the display values entered as in the
sublist, before performing an internal Maintained Reset on the selected
displays. This function does not apply to the RTC Time or Date displays.
NO
Cycle Counter
C-dSP
NO
Timer
t-dSp
FACTORYDESCRIPTIONDISPLAY
When active (maintained action), the timing or counting direction for the
display entered as in the sublist, will be reversed from the direction set by
the Timing Direction () and/or Counting Direction () parameters in
Modules 1 and 4. (Program only one User Input per display for this function.)
This function does not apply to RTC Time or Date displays.
When active (maintained action), timing and counting ceases for the displays
entered as in the sublist. The inhibit function is not a or
event in Setpoint programming. This function does not apply to RTC Time or
Date displays. Program only one user input for this function.
ª
«
ª
«
INHIBIT (Level Active)
ª
«
ª
«
CHANGE DIRECTION (Level Active)
NO
Cycle Counter
C-dSP
NO
Timer
t-dSp
FACTORYDESCRIPTIONDISPLAY
NO
Cycle Counter
C-dSP
NO
Timer
t-dSp
FACTORYDESCRIPTIONDISPLAY

D
2811-717-767-6511
When active (maintained action), the meter “holds” (maintains) the present
output state for all Setpoints entered as in the sublist. Does not apply to
Output Set and Reset User Inputs. Program only one user input for this function.
Note: The remaining parameters only appear when a Setpoint Card is
installed in the meter.
ª
«
ª
«
OUTPUT HOLD (Level Active)
NO
Setpoint 4
SP-4
NO
Setpoint 3
SP-3
NO
Setpoint 2
SP-2
NO
Setpoint 1
SP-1
FACTORYDESCRIPTIONDISPLAY
ª
«
ª
«
OUTPUT SET (Level Active)
When activated (maintained action), the meter continually activates the
output for all Setpoints entered as in the sublist.
NO
Setpoint 4
SP-4
NO
Setpoint 3
SP-3
NO
Setpoint 2
SP-2
NO
Setpoint 1
SP-1
FACTORYDESCRIPTIONDISPLAY
When activated (momentary action), the meter activates the output for all
Setpoints entered as in the sublist.
ª
«
ª
«
OUTPUT SET (Edge Triggered)
NO
Setpoint 4
SP-4
NO
Setpoint 3
SP-3
NO
Setpoint 2
SP-2
NO
Setpoint 1
SP-1
FACTORYDESCRIPTIONDISPLAY
When activated (maintained action), the meter continually deactivates the
output for all Setpoints entered as in the sublist.
ª
«
ª
«
OUTPUT RESET (Level Active)
NO
Setpoint 4
SP-4
NO
Setpoint 3
SP-3
NO
Setpoint 2
SP-2
NO
Setpoint 1
SP-1
FACTORYDESCRIPTIONDISPLAY
When activated (momentary action), the meter deactivates the output for all
Setpoints entered as in the sublist.
ª
«
ª
«
OUTPUT RESET (Edge Triggered)
NO
Setpoint 4
SP-4
NO
Setpoint 3
SP-3
NO
Setpoint 2
SP-2
NO
Setpoint 1
SP-1
FACTORYDESCRIPTIONDISPLAY
When activated (momentary action), the display intensity changes to the next
intensity level (of 4). The four levels correspond to Display Intensity Level
() settings of 0, 3, 8 & 15. The intensity level, when changed via the User
Input/Function Key, is not retained at power-down, unless Quick Programming
or Full Programming mode is entered and exited. The unit will power-up at the
last saved intensity level.
ª
«
ª
«
CHANGE DISPLAY INTENSITY LEVEL
Note: The next two parameters only appear when an RS232 or RS485 Serial
Communications Card is installed in the meter.
When activated, the meter issues a block print through the serial port. The
specific values transmitted during a print request are selected with the Print
Options parameter in Module 7. For User Inputs (level active), the meter
transmits blocks repeatedly as long as the input is active. For Function Keys,
(edge triggered) only one block is transmitted per key press.
ª
«
ª
«
PRINT REQUEST
ª
«
ª
«
PRINT REQUEST and RESET (Edge Triggered)
When activated (momentary action), the meter first issues a block print
through the serial port, and then performs a Momentary Reset on the displays
entered as in the sublist. The specific values transmitted in the print block
are selected with the Print Options parameter in Module 7. Only one transmit
and reset occurs per User Input activation or Function Key press.
NO
Cycle Counter
C-dSP
NO
Timer
t-dSp
FACTORYDESCRIPTIONDISPLAY

D
282 www.redlion.net
6.3 MODULE 3 - DISPLAY AND PROGRAM LOCK-OUT
PARAMETERS ()
Module 3 is the programming module for setting the Display Lock-out
Parameters and the “Quick Programming Mode” Value Access Parameters. In the
Quick Programming mode, after the PROGRAM LOCKOUT PARAMETERS
and before the Security Code (), a Display Intensity Level ()
parameter is available when the security code is non-zero. It allows the display
intensity to be set to 1 of 16 levels (0-15).
ª
«
TIMER DISPLAY LOCK-OUT
CYCLE COUNTER DISPLAY LOCK-OUT
ª
«
ª
«
ª
«
These displays can be programmed for or . When a particular meter
function is not used, the Display Lock-out should be set to for that display.
Setpoint Values for SP1 thru SP4 can be programmed for , , or .
and are only displayed when they apply to the Setpoint Action
() programmed for that particular Setpoint. (See Module 6 for details.)
ª
«
SETPOINT 1 to 4 VALUE ACCESS ** (= 1 thru 4)
ª
«
ª
«
PROGRAM LOCK-OUT PARAMETERS (VALUE ACCESS)
“Full” Programming Mode permits all parameters to be viewed and
modified. This programming mode can be locked with a Security Code and/or
a User Input. When locked, and the PAR key is pressed, the meter enters a
Quick Programming Mode. In this mode, access to Setpoint Values, Timer &
Cycle Counter Start/Stop Values, and Time Setting for the Real-Time Clock can
be programmed for “Read”, “Enter”, or “Lock” defined as follows:
Timer & Counter Start/Stop Values can be programmed for , , or .
ª
«
TIMER & CYCLE COUNTER START/STOP VALUE ACCESS
ª
«
ª
«
ª
«
This parameter can be programmed for or . Selecting allows
setting or changing the RTC Time in Quick Programming mode.
ª
«
to
Entry of a non-zero value will cause the prompt to appear when trying
to access the “Full” Programming Mode. Access will only be allowed after
entering a matching security code or the universal unlock code of . With this
lock-out, a User Input would not have to be used for the Program Lock-out
function. Note however, the Security Code lock-out is overridden when an User
Input, configured for Program Lock-out (), is not active (See Chart.)
SECURITY CODE
ª
«
PROGRAMMING MODE ACCESS
Throughout this bulletin, Programming Mode (without Quick in front) always
refers to “Full” Programming.
Immediate accessFull ProgrammingNot Active
0
No accessQuick ProgrammingActive
0
Immediate accessFull ProgrammingNot Active
not 0
After Quick Programming
with correct Security
code entry
Quick ProgrammingActive
not 0
After Quick Programming
with correct Security
code entry
Quick Programming————
not
not 0
Immediate accessFull Programming————
not
0
FULL PROGRAMMING
MODE ACCESS
MODE WHEN “PAR”
KEY IS PRESSED
USER INPUT
STATE
USER INPUT
SELECTION
SECURITY
CODE
SELECTION DESCRIPTION
Read Visible, not changeable, in Quick Programming Mode
Lock Not visible in Quick Programming Mode
Enter Visible and changeable in Quick Programming Mode
DISPLAY
DISPLAY LOCK-OUT PARAMETERS
When operating in the Display Mode, the meter displays can be viewed
consecutively by repeatedly pressing the DSP key. The annunciators to the left
of the display indicate which display is currently shown. Timer (TMR), Cycle
Counter (CNT), or Date (DAT). The Time Display for the Real-Time Clock is
shown with no annunciator. Any of these displays can be locked from view with
the DISPLAY LOCK-OUT parameters. Using these parameters, each display
can be programmed for “Read” or “Lock” defined as follows:
DISPLAY DESCRIPTION
Visible in Display Mode
Not visible in Display Mode
SELECTION
Read
Lock
** These parameters only appear if a Setpoint option card is installed. = Setpoint Number 1 thru 4
PARAMETER MENU
PAXCK: REAL-TIME CLOCK DATE/TIME DISPLAY LOCK-OUT
PAXCK: REAL-TIME CLOCK TIME SETTING ACCESS

D
2831-717-767-6511
6.4 MODULE 4 - CYCLE COUNTER PARAMETERS ()
PARAMETER MENU
Module 4 is the programming module for the Cycle Counter Parameters. In the
Display Mode, the CNT annunciator indicates the Cycle Counter display is
currently being shown. An EXCHANGE PARAMETER LISTS feature, which
includes the Cycle Counter Start and Stop Values, is explained in Module 2.
This parameter selects the source from which a count is added to or
subtracted from the Cycle Counter. Select if the Cycle Counter is not
being used, which will exit the module and bypass the remaining parameters.
When is selected, a count is generated each time the User 1 Input is
activated. When selected as the count source, User Input 1 can still be
programmed to perform a User Function described in Module 2, if desired. In
this case, the Cycle Counter would be counting the number of times the
particular User Function occurred.
The Timer Reset () selection generates a count when either a manual
or automatic reset occurs. (See Module 6 for programming Automatic Resets.)
The Output ON/OFF selections generate a count when the chosen output
either activates or deactivates. These selections only appear when a Setpoint
Card is installed. O3 and O4 selections only appear for Quad Setpoint cards.
CYCLE COUNTER COUNT SOURCE
ª
«
Counting direction can be reversed through a User Input. (See Module 2.)
CYCLE COUNTER COUNTING DIRECTION
ª
«
The Cycle Counter returns to this value whenever a Cycle Counter Reset
occurs. Non-zero values are normally used for “down counting” applications,
but they can also provide an “offset” value when counting up.
CYCLE COUNTER START VALUE
ª
«
to 999
The Cycle Counter stops counting when this value is reached, regardless of
the operation of the Timer. Selecting will display the sub-menu where
the Stop Value can be set or changed. The Stop condition is cleared when a
Cycle Counter Reset occurs. Select if a Stop Value is not used.
CYCLE COUNTER STOP VALUE
ª
«
to
«
CYCLE COUNTER RESET AT POWER-UP
The Cycle Counter can be programmed to Reset at each meter power-up.
ª
«
6.5 MODULE 5 - TIMER OPERATING MODES ()
PARAMETER MENU
This module can only be accessed if a Setpoint Card is installed.
* Only the value parameters which apply to the selected mode will appear.
- Interval Timing (Edge Triggered)
INt-E
- Interval Timing (Level Triggered)
INt-L
- On-Delay/Interval Timing
dLYINt
- Repeat Cycle Timing
rEPEAt
- Off-Delay Timing
OF-dLY
- On-Delay Timing
ON-dLY
This parameter is used to select Predefined Operating Modes for the Timer.
These modes cover a variety of timing applications frequently encountered in
industrial control processes. When using a Predefined mode, the operator needs
only to set the actual Setpoint On/Off or Time-out values for the particular
application. However, each programming parameter will still be accessible, in
order to make modifications to the predefined settings if desired.
PREDEFINED TIMER OPERATING MODE
ª
«
The Predefined modes control the activation and deactivation of Output 1, in
relation to Start and Reset signals applied to the Timer inputs. (See timing
diagrams which follow.) When a selection other than is chosen, the
parameters for Setpoint 1 () in Module 6 are automatically configured to
implement the selected operating mode. For some modes, parameters in
Modules 1 and 2 are also automatically configured to properly implement the
predefined mode. Refer to the chart shown with the timing diagrams for the
specific parameters loaded for each predefined mode. Also, note the specific
external wiring or plug jumper settings required for some modes.
The Setpoint On/Off or Time-out values for the specific application should
be entered directly in Module 5 after selecting the operating mode. Only the
value parameters which apply to the selected mode are displayed. These values
can also be entered through Module 6, Setpoint (Alarm) Parameters, if desired.
Select if not using a Predefined Operating Mode, in which case Setpoint
parameters must all be individually programmed for the particular application.

D
284 www.redlion.net
Timing Diagrams for Predefined Timer Operating Modes
NOTE: Input A is shown as a Sourcing input (active high). If a Sinking input (active low) is used, the logic levels for Input A would be inverted.
Input A
Output 1 T1
T2 T
T1
Input A
Output 1
TT
Input A
Output 1 T
T
Input A
Output 1 T
T
Input A
Output 1 T T
Input A
Output 1 T1 T
T2
On-Delay Timing On-Delay / Interval Timing
Repeat Cycle Timing Interval Timing (Edge triggered)
Off-Delay Timing Interval Timing (Level triggered)
The input signal must be wired to both the Input A and
User Input 1 terminals. The Timer Input plug jumper and
the User Input plug jumper must both be set to the
same position (either both SNK or both SRC).
The input signal must be wired to both the Input A and
User Input 1 terminals. The Timer Input plug jumper and
the User Input plug jumper must be set to opposite
positions (one SNK, one SRC) and the Input signal must
be a current sinking type (i.e. pulls input to common).
Parameter Settings for Predefined Timer Operating Modes
MODULE 1 - Timer Input Parameters ()
MODULE 2 - User Input Parameters ()
MODULE 6 - Setpoint Parameters ()
P-UP-1
Lit-1
OrSd-1
AUtO-1
tstP-1
tOUt-1
SPOf-1
OFf-1
SP-1
ON-1
OFFOFFOFFOFFOFFOFF
Power-up State
NOrNOrNOrNOrNOrNOr
Setpoint Annunciator
NONONONONONO
Output Reset w/display Reset
NONONO0-OFFNONO
Timer/Counter Auto Reset
0-OFF0-OFF0-OFFNO0-OFFNO
Timer Stop
T*N/AT2*N/AN/AN/ATime-out Value
N/AT*N/AT2*T*N/ASetpoint Off Value
N/A
VALUE
N/A
VALUEVALUE
N/ASetpoint Off
N/AN/AT1*T1*N/AT*Setpoint On Value
t-Strtt-StrtVALUEVALUEt-StrtVALUE
Setpoint On
NOrNOrNOrNOrNOrNOr
Output Logic
t-OUtON-OFFt-OUtON-OFFON-OFFLAtCH
Setpoint Action
t-dSPt-dSPt-dSPt-dSPt-dSPt-dSP
Setpoint Assignment
SP-1SP-1SP-1SP-1SP-1SP-1
Setpoint Select
INt-EINt-LdLYINtrEPEAtOF-dLYON-dLY
PARAMETER
OUt-1
ACt-1
ASN-1
SPSEL
DISPLAY
EdrS-2 EdrS-2 EdrS-2LEVrStEdrS-2EdrS-2
Timer Input Operation
rEPEAt dLYINt INt-EINt-LOF-dLYON-dLY
PARAMETER
INP OP
DISPLAY
NO
N/A
OrSt-E
NO
N/A
NO
N/A
NO
rSt-L
NO
N/A
Reset Key
User Input 1
INt-EINt-LdLYINtrEPEAtOF-dLYON-dLY
PARAMETER
rSt
USEr-1
DISPLAY
* Refer to timing diagrams. These parameters are the actual Setpoint On/Off or Time-Out values set by the user for the specific application.
(SP1-YES)
NO

D
2851-717-767-6511
ª
«
SETPOINT ACTION
This parameter determines the mode for output deactivation as shown below.
Output activation is controlled by the SETPOINT ON parameter setting.
The and selections are not available when Setpoint is assigned
to .
PARAMETER MENU
ª
«
SETPOINT SELECT
Select the Setpoint (alarm) output to be programmed. This provides access to
the parameters for that particular Setpoint. The “” in the following parameter
displays, reflects the chosen Setpoint number (1 thru 4). After the chosen
Setpoint is programmed, the display returns to . Select the next
Setpoint to be programmed and continue this sequence for each Setpoint. Select
to exit the module. and apply to Quad Setpoint cards only.
ª
«
OUTPUT LOGIC
Normal Output Logic () turns the output “on” when activated and “off”
when deactivated. Reverse Output Logic () turns the output “off” when
activated and “on” when deactivated.
ª
«
SETPOINT ASSIGNMENT
Select the meter display to which the Setpoint is assigned: Timer (),
Cycle Counter (), Real-Time Clock Date display () or Real-Time
Clock Time display (). (The and selections only appear if a
Real-Time Clock option card is installed.)
By selecting , the Setpoint is not assigned to a specific display.
However, the output can still be activated (set) and deactivated (reset) by
various “events”. Such events include the Timer starting or stopping, or another
Setpoint output turning On or Off. The output can also be set and reset through
a User Input function or through serial communications.
This parameter determines when the Setpoint output will activate. Output
activation can occur at a specific Setpoint Value () or can be triggered by
various “events”, as shown in the parameter list. Such events include the Timer
starting () or stopping (), or by the action (event) that causes
another Setpoint output to turn On or Off. When programmed for an event, the
Setpoint must not be used as the Setpoint On event for another Setpoint.
Selecting displays a sub-menu where the Setpoint value is entered. The
Setpoint value is based on the meter display to which the Setpoint is assigned
(). When assigned to the Timer or Cycle Counter, the Setpoint value is
entered in the same format as the assigned display. When assigned to the Real-
Time Clock Date Display (), the date value is entered in month.day.year
format (). When assigned to the Real-Time Clock Time Display (),
the Setpoint value is always entered in format (Hours-Minutes with
AM/PM selection). In Setpoint One-shot mode (See Daily On Occurrence), the
One-shot Setpoint is enabled (armed) by scrolling the AM/PM digit until the 2nd
digit decimal point is lit.
SETPOINT OFF
ª
«
ª
«
to
Based on “Setpoint Off” Setting
After “Time-Out Value” Elapses
At Reset (Manual or Automatic)
On-Off Output Mode
Timed Output Mode
Latched Output Mode
OUTPUT DEACTIVATESDESCRIPTION
ON-OFF
t-OUt
LAtCH
DISPLAY
SETPOINT ON
ª
«
The Setpoint Off parameter only appears when the Setpoint Action ()
is programmed for On-Off Output mode (). In this mode, this parameter
determines when the Setpoint output will deactivate. Output deactivation can
occur at a specific Setpoint Off Value () or can be triggered by various
“events”, as shown in the parameter list. Such events include the Timer starting
() or stopping (), or by the action (event) that causes another
Setpoint output to turn On or Off. When programmed for an event, the Setpoint
must not be used as the Setpoint Off event for another Setpoint.
Selecting will display a sub-menu where the Setpoint Off value is
entered. The Setpoint Off value is based on the meter display to which the
Setpoint is assigned (). When assigned to the Timer or Cycle Counter, the
value is entered in the same format as the assigned display. When assigned to
the Real-Time Clock Date Display (), the date value is entered in
month.day.year format (). When assigned to the Real-Time Clock Time
Display (), the value is always entered in format (Hours-Minutes
with AM/PM selection).
ª
«
to
= Setpoint Number 1 thru 4
This module can only be accessed if a Setpoint Card is installed.
6.6 MODULE 6 - SETPOINT (ALARM) PARAMETERS ()
Module 6 is the programming module for the Setpoint (Alarm) Output
Parameters. This programming module can only be accessed if a Setpoint card
is installed. Depending on the card installed, there will be two or four Setpoint
outputs available. The Setpoint Assignment and Setpoint Action parameters
determine the applicable Setpoint features, and dictate which subsequent
parameters will appear for the Setpoint being programmed.
This section of the bulletin replaces the bulletin shipped with the Dual and
Quad Setpoint plug-in cards. Discard the separate bulletin when using Setpoint
plug-in cards with the PAXCK and PAXTM.

D
286 www.redlion.net
DISPLAY DESCRIPTION FACTORY
Sunday
Monday
Saturday
Friday
Thursday
Wednesday
Tuesday
TIME-OUT VALUE
to
ª
«
ª
«
TIMER STOP
ª
«
SETPOINT POWER-UP STATE
Determines the on/off state of the Setpoint output at power-up. Regardless of
output logic setting (normal or reverse).
–Deactivates the Setpoint output at power-up
–Activates the Setpoint output at power-up
–Restores the output to the state it was in prior to power-down
Timer stops when the Setpoint output activates () or deactivates ().
Select if the output should not affect the Timer Run/Stop status.
Stopping the Timer as a result of this parameter does not constitute a
condition (event) for the Setpoint On or Setpoint Off parameters.
This parameter only appears when the Setpoint is assigned () to the
Real-Time Clock Time display (). This parameter determines the days of
the week when the Setpoint output will activate.
Selecting displays a sublist for choosing the days of the week. On all
days entered as in the sublist, the output will activate. On all days entered
as , the output will not activate. The output activation is repetitive, and will
occur every week on the chosen day(s).
ª
«
This parameter only appears when the Setpoint is assigned () to the
Real-Time Clock Time display () and when the Setpoint Action ()
is programmed for On-Off Output mode (). In this mode, this parameter
determines the days of the week when the Setpoint output will deactivate.
Selecting displays a sublist for choosing the days of the week. On all
days entered as in the sublist, the output will deactivate. On all days entered
as , the output will not deactivate. The output deactivation is repetitive, and
will occur every week on the chosen day(s).
ª
«
The Time-Out Value only appears when the Setpoint Action () is
programmed for Timed Output mode (). In this mode, the Time-Out Value
is the Setpoint Output time duration, from activation to deactivation. This value
is always entered in minutes, seconds, and hundredths of seconds format. The
maximum Time-Out Value is 99 minutes 59.99 seconds.
ª
«
TIMER/COUNTER AUTO RESET
When the Setpoint output activates () or deactivates (), the meter
automatically resets the Setpoint Assignment display (). Select if the
Setpoint output should not cause the assigned display to reset. Does not apply
to manual activations or deactivations by user input, function key, or serial
communications.
ª
«
OUTPUT RESET WITH DISPLAY RESET
When is selected, the Setpoint output will reset when the Setpoint
Assignment display () resets. Select if the Setpoint output should not
reset when the assigned display resets.
ª
«
SETPOINT ANNUNCIATOR
This parameter controls the illumination of the LED annunciator for the
corresponding Setpoint output () as follows:
Saturday
Friday
Thursday
Wednesday
Tuesday
Monday
Sunday
FACTORYDESCRIPTIONDISPLAY
Normal ()–Annunciator displayed when output is “on” (activated)
Reverse ()–Annunciator displayed when output is “off” (deactivated)
Flash ()–Annunciator and display flashes when output is “on” (activated)
Off ()–Annunciator disabled
Setpoint One-Shot Mode
If all days are set to , the Setpoint will operate in “One-shot” mode. When
a One-shot setpoint is enabled (armed), the setpoint output will activate at the
set time and disable itself from activating again. To enable or re-enable a one-
shot alarm, go to the Setpoint value entry display and press the Up or Dn key
repeatedly while the AM/PM digit is selected (flashing). When the 2nd digit
decimal point is lit, the Setpoint is enabled. The Setpoint enable status is saved
at power-down. The enable state of the Setpoint is not affected or changed when
the Parameter List is exchanged.
The setpoint will turn off (de-activate) as programmed per the Setpoint
Action selected. If mode is selected, program all the Daily Off days to
to have the Setpoint turn off at the next Daily Off Occurrence. The One-
shot status can also be viewed or set from the Setpoint Off value entry display.
PAXCK: DAILY OFF OCCURRENCE
PAXCK: DAILY ON OCCURRENCE

D
2871-717-767-6511
6.7 MODULE 7 - SERIAL COMMUNICATIONS PARAMETERS ()
PARAMETER MENU
This module can only be accessed if a Serial Communications Card is installed.
* Only appears if the Real-Time Clock Card is installed.
Module 7 is the programming module for the Serial Communications
Parameters. These parameters are used to match the serial settings of the PAX
with those of the host computer or other serial device, such as a terminal or
printer. This programming module can only be accessed if an RS232 or RS485
Serial Communications card is installed.
This section also includes an explanation of the commands and formatting
required for communicating with the PAX. In order to establish serial
communications, the user must have host software that can send and receive
ASCII characters. Red Lion’s Crimson®software can be used for configuring
the PAX. (See ordering information.) For serial hardware and wiring details,
refer to section 4.5 Serial Communication Wiring.
This section of the PAXTM/CK bulletin replaces the bulletin shipped with the
RS232 and RS485 serial communications plug-in cards. Discard the separate
bulletin when using those serial plug-in cards with the PAXTM/CK. Also, this
section does NOT apply to the DeviceNet, Modbus, or Profibus-DP
communication cards. For details on the operation of the Fieldbus cards, refer
to the bulletin shipped with each card.
ª
«
BAUD RATE
Set the baud rate to match the other serial communications equipment on the
serial link. Normally, the baud rate is set to the highest value at which all the
serial equipment are capable of transmitting and receiving data.
ª
«
DATA BITS
Select either 7- or 8-bit data word lengths. Set the word length to match the
other serial communications equipment on the serial link.
ª
«
PARITY BIT
This parameter only appears when the Data Bits parameter is set to a 7-bit
data word length. Set the parity bit to match that of the other serial
communications equipment on the serial link. The meter ignores parity when
receiving data and sets the parity bit for outgoing data. If parity is set to , an
additional stop bit is used to force the frame size to 10 bits.
ª
«
METER ADDRESS
Enter the serial meter (node) address. With a single meter, an address is not
needed and a value of zero can be used. With multiple meters (RS485
applications), a unique 2 digit address number must be assigned to each meter.
Addresses 98 and 99 are reserved to configure a unit as a serial real-time
clock master. See Serial Real-time Clock Master Adressing.
to
TST TSP CST CSP
NO
Timer/Cnt Start & Stop Values
StrStp
SO1 SO2 SO3 SO4
NO
Setpoint Off/Time-Out Values*
SpNtOF
SP1 SP2 SP3 SP4
NO
Setpoint Values*
SPNt
TIM
NO
RTC Time*
rtC-t
DAT
NO
RTC Date*
rtC-d
CNT
NO
Cycle Counter
C-dSP
TMR
yES
Timer
t-dsp
MNEMONICFACTORYPARAMETERDISPLAY
ª
«
ABBREVIATED PRINTING
This parameter determines the formatting of data transmitted from the meter
in response to a Transmit Value (T) command or a Block Print Request (P)
command. Select for a Full print transmission, which consists of the meter
address, mnemonics, and parameter data. Select for abbreviated print
transmissions, consisting of the parameter data only. This setting affects all the
parameters selected in the PRINT OPTIONS. (Note: If the meter address is 00,
the address will not be sent during a Full transmission.)
ª
«
PRINT OPTIONS
This parameter selects the meter values transmitted in response to a Print
Request. A Print Request is sometimes referred to as a block print because more
than one parameter can be sent to a printer or computer as a block.
Selecting displays a sublist for choosing the meter parameters to appear
in the block print. All parameters entered as in the sublist will be
transmitted during a block print. Parameters entered as will not be sent.
* These values are plug-in card dependent.
ª
«
PAXCK: REAL-TIME CLOCK PRINT FORMATTING
This parameter determines the formatting of the Real-Time Clock (RTC)
values transmitted from the meter in response to a Transmit Value (T) command
or a Block Print Request (P) command. This parameter appears only when a
Real-Time Clock plug-in option card is installed.
When is selected, RTC values are formatted as per the RTC Time and
Date Display Formats programmed in Module 8. The Day of Week value is sent
as a character string.
When is selected, the meter sends the RTC values as numeric data only.
This selection allows the RTC values to be recognized by the Red Lion HMI
products. RTC Time/Date units are separated by a “.”. The Day is sent as a
single number as shown below.
TIME - Hours (24-Hr. format), Minutes, Seconds (HHMMSS)
DATE - Month, Day, Year (mmddyy)
DAY - 1 = Sunday thru 7 = Saturday

D
288 www.redlion.net
SERIAL RTC MASTER ADDRESSING
A meter, having software code version 2.3 or greater, with a Real Time Clock
Card and an RS485 Serial Communication Card installed, can act as a Serial
RTC Master, when programmed with meter address 98 or 99. With this feature,
whenever the Master meter's time, date or day is changed, through quick or
main programming, it will transmit and make the same change to the other
PAXCK's on the RS485 bus. Only one meter should be configured as Master.
This Master, with address 98 or 99, should also be programmed as the “Host”
in module SUD under Clock Synchronization. With it programmed as Host,
the other PAXCK Slaves will update hours, minutes and seconds to the Host
once an hour and the Real-Time Clock Wiring (terminals 16-18) will not be
necessary.
Meter addresses 98 and 99 are distinguished as follows:With address 98, the
meter will transmit the change to all meters on the RS485 bus addressed as “0”.
This is useful when using both newer or older software code version meters, or
when another master (computer, operator interface) is not being used.
With address 99, the meter will transmit the change to all, software code
version 2.3 or greater, meters on the RS485 bus using a global broadcast address
suffix. This is useful when it is necessary to have unique or other than 0 serial
meter addresses or when having a computer or operator interface connected.
SENDING SERIAL COMMANDS AND DATA
When sending commands to the meter, a string containing at least one
command character must be constructed. A command string consists of a
command character, a value identifier, numerical data (if writing data to the
meter) followed by the command terminator character * or $.
Command Chart
Command String Construction
The command string must be constructed in a specific sequence. The meter
does not respond with an error message to invalid commands. The following
procedure details construction of a command string:
1. The first characters consist of the Node Address Specifier (N) followed by a
1 or 2 character address number. The address number of the meter is
programmable. If the node address is 0, this command and the node address
itself may be omitted. The address suffix , “?” is the global broadcast address
specifier. A command string that is sent with N? prefix will be accepted by
all PAXCKs on the RS485 network (software code version 2.3 or greater).
This is useful for setting all meters to the current time, date or day that may
have unique meter addresses on a bus. It is important not to send (P)rint or
(T)ransmit commands using N? prefix, as it will result in multiple meters
responding at the same time. This is the only command that may be used in
conjunction with other commands.
2. After the optional address specifier, the next character is the command
character.
3. The next character is the Register ID. This identifies the register that the
command affects. The P command does not require a Register ID character.
It prints according to the selections made in print the options. If constructing
a value change command (writing data), the numeric data is sent next.
4. All command strings must be terminated with the string termination
characters * or $. The meter does not begin processing the command string
until this character is received. See Timing Diagram figure for differences
between terminating characters.
Note: On a change value command (V), if the command string is terminated
with the * character, all values are stored in E2PROM memory. Values are
not stored if the $ terminator is used.
Register Identification Chart
1. Register Names are also used as Register Mnemonics during full transmission.
2. The registers associated with the P command are set up in Print Options (Module 7).
3. Unless otherwise specified, the Transmit Details apply to both T and V
Commands.
Command String Examples:
1. Address = 17, Write 350 to Setpoint 1
String: N17VE350$
2. Address = 5, Cycle Counter value, response time of 50 to 100 msec. min.
String: N05TB*
3. Address = 0, Reset Timer value
String: RA*
Transmitting Data To the Meter
Numeric data sent to the meter must be limited to Transmit Details listed in the
Register Identification Chart. Leading zeros are ignored. The meter ignores any
decimal point and conforms the number to the scaled resolution. (ie. The meter’s
scaled decimal point position is set for 0.0 and 25 is written to a register. The value
of the register is now 2.5. In this case, write a value of 250 to equal 25.0).
For RTC Time [C] and Date [D] Value:
Time - 24 Hours, Minutes, Seconds (HHMMSS)
Ex: 083000 = 8:30 AM, 144500 = 2:45 PM
Date - Month, Day, Year (mmddyy)
Ex: 123101 = December 31, 2001
Day - 1 = Sunday through 7 = Saturday
EX: 3 = Tuesday
Notes:
1. Since the meter does not issue a reply to value change commands, follow
with a transmit value command for readback verification.
2. The date and day must be set separately.
Transmitting Data From the Meter
Data is transmitted from the meter in response to either a transmit command
(T), a print block command (P) or User Function print request. The response
from the meter is either a full field transmission or an abbreviated transmission.
The meter response is established in Module 7.
COMMAND DESCRIPTION NOTES
NNode (Meter) Address
Specifier
Address a specific meter. Must be followed by
node address. Not required when address = 00.
TTransmit Value (read) Read a register from the meter. Must be
followed by register ID character.
VValue change (write) Write to register of the meter. Must be followed
by register ID character and numeric data.
RReset Reset a register or output. Must be followed
by register ID character
PBlock Print Request
(read)
Initiates a block print output. Registers are
defined in programming.
ID VALUE DESCRIPTION REGISTER
NAME 1COMMAND 2
ATimer Value TMR 6 digit
BCycle Counter Value CNT 6 digit
CRTC Time Value TIM 6 digit
DRTC Date Value DAT 6 digit
ESetpoint 1 SP1 6 digit
FSetpoint 2 SP2 6 digit
GSetpoint 3 SP3 6 digit
H Setpoint 4 SP4 6 digit
ISetpoint 1 Off Value SO1 6 digit
JSetpoint 2 Off Value SO2 5 digit
T, V, R
TRANSMIT DETAILS 3
T, V, R
T, V
T, V
T, V, R
T, V, R
T, V, R
T, V, R
T, V
T, V
KSetpoint 3 Off Value SO3 6 digit
LSetpoint 4 Off Value SO4 6 digit
MTimer Start Value TST 6 digit
OCycle Counter Start Value CST 6 digit
QTimer Stop Value TSP 6 digit
SCycle Counter Stop Value CSP 6 digit
UAuto/Man Register MMR 0 - auto, 1 - manual
WDay of Week Value DAY 1 = Sun....7 = Sat
XSetpoint Register SOR 0 - not active, 1 - active
T, V
T, V
T, V
T, V
T, V
T, V
T, V
T, V
T, V

D
2891-717-767-6511
Full Transmission ( = )
3These characters only appear in the last line of a block print.
The first two characters transmitted are the unit address. If the address
assigned is 0, two spaces are substituted. A space follows the unit address field.
The next three characters are the register mnemonic.
The numeric data is transmitted next. The numeric field is 12 characters long
(decimal points are loaded depending on timer range selected). The data is right-
aligned with leading spaces for any unfilled positions.
The end of the response string is terminated with <CR> and <LF>. When a
block print is finished, an extra <SP>, <CR>, and <LF> are used to provide
separation between the transmissions.
Abbreviated Transmission ( = )
3These characters only appear in the last line of a block print.
The abbreviated response suppresses the address and register mnemonics,
leaving only the numeric part of the response.
Note: Transmissions are formatted to match the way the parameter is displayed.
This includes setpoints.
Example: SP1 assigned to RTC. RTC format = 12:00 P.
SP1 printout = 12:00 P.
Note: When communicating with a Red Lion Controls HMI unit, set in
programming module 7 (serial) to . This formats the RTC parameters to:
Time - 24 Hours, Minutes, Seconds
Date - Month, Day, Year
Day - 1 = Sunday through 7 = Saturday
Decimal points are substituted for all punctuation.
Meter Response Examples:
1. Address = 17, full field response, Cycle Counter = 875
17 CNT 875 <CR><LF>
2. Address = 0, full field response, Setpoint 2 = 250.5
SP2 250.5<CR><LF>
3. Address = 0, abbreviated response, Setpoint 2 = 250, last line of block print
250<CR><LF><SP><CR><LF>
Auto/Manual Mode Register (MMR) ID: U
This register sets the controlling mode for the outputs. In Auto Mode (0) the
meter controls the setpoint output. In Manual Mode (1) the outputs are defined
by the registers SOR. When transferring from auto mode to manual mode, the
meter holds the last output value (until the register is changed by a write). Each
output may be independently changed to auto or manual. In a write command
string (VU), any character besides 0 or 1 in a field will not change the
corresponding output mode.
U abcd
d = SP4
c = SP3
b = SP2
a = SP1
Example: VU0011 places SP3 and SP4 in manual.
Setpoint Output Register (SOR) ID: X
This register is used to view or change the states of the setpoint outputs.
Reading from this register (TX) will show the present state of all the setpoint
outputs. A “0” in the setpoint location means the output is inactive and a “1”
means the output is active. The output logic parameter in Module 6 will affect
the active logic state.
X abcd
d = SP4
c = SP3
b = SP2
a = SP1
In Automatic Mode, the meter controls the setpoint output state. In Manual
Mode, writing to this register (VX) will change the output state. Sending any
character besides 0 or 1 in a field or if the corresponding output was not first in
manual mode, the corresponding output value will not change.
Example: VX10* will result in output 1 active and output 2 inactive.
50-100 msec. for *
2-50 msec. for $PrintP
50-100 msec. for *
2-50 msec. for $TransmitT
100-200 msec.WriteV
2-50 msec.ResetR
PROCESS TIME (t2)
COMMENTCOMMAND
COMMAND RESPONSE TIME
The meter can only receive data or transmit data at any one time (half-duplex
operation). During RS232 transmissions, the meter ignores commands while
transmitting data, but instead uses RXD as a busy signal. When sending
commands and data to the meter, a delay must be imposed before sending
another command. This allows enough time for the meter to process the
command and prepare for the next command.
Refer to the Timing Diagrams below. At the start of the time interval t1, the
computer program prints or writes the string to the com port, thus initiating a
transmission. During t1, the command characters are under transmission and at
the end of this period, the command terminating character (*, $) is received by
the meter. The time duration of t1is dependent on the number of characters and
baud rate of the channel.
t1= (10 times the # of characters) / baud rate
At the start of time interval t2, the meter starts the interpretation of the
command and when complete, performs the command function. This time
interval t2varies. If no response from the meter is expected, the meter is ready
to accept another command.
If the meter is to reply with data, the time interval t2is controlled by the use
of the command terminating character. The '*' terminating character results in a
response time window of 50 msec. minimum and 100 msec. maximum. This
allows sufficient time for the release of the sending driver on the RS485 bus.
Terminating the command line with '$' results in a response time window (t2) of
2 msec. minimum and 50 msec. maximum. The faster response time of this
terminating character requires that sending drivers release within 2 msec. after
the terminating character is received.
At the beginning of time interval t3, the meter responds with the first
character of the reply. As with t1, the time duration of t3is dependent on the
number of characters and baud rate of the channel. At the end of t3, the meter is
ready to receive the next command.
t3= (10 times the # of characters) / baud rate
NO REPLY FROM METER
RESPONSE FROM METER
Timing Diagrams
SERIAL TIMING
BYTE DESCRIPTION
19 <CR> (Carriage return)
1, 2 2 byte Node (Meter) Address field [00-99]
7-18 12 byte numeric data field: 6 bytes for number, up to 3 for decimal points.
3<SP> (Space)
4-6 3 byte Register Mnemonic field
20 <LF> (Line feed)
21 <SP> (Space)3
22 <CR> (Carriage return)3
23 <LF> (Line feed)3
<LF> (Line feed)3
17
<CR> (Carriage return)3
16
<SP> (Space)3
15
<LF> (Line feed)14
<CR> (Carriage return)13
12 byte data field, 6 bytes for number, up to 3 bytes for decimal points.1-12
DESCRIPTIONBYTE

D
290 www.redlion.net
Module 8 is the programming module for the Real-Time Clock (RTC) Date
and Time Parameters. In the Display Mode, the DAT annunciator indicates the
RTC Date is currently being shown. The RTC Time display is shown with no
annunciator. This programming module can only be accessed if a Real-Time
Clock card is installed.
COMMUNICATION FORMAT
Data is transferred from the meter through a serial communication channel.
In serial communications, the voltage is switched between a high and low level
at a predetermined rate (baud rate) using ASCII encoding. The receiving device
reads the voltage levels at the same intervals and then translates the switched
levels back to a character.
The voltage level conventions depend on the interface standard. The table
lists the voltage levels for each standard.
Data is transmitted one byte at a time with a variable idle period between
characters. Each ASCII character is “framed” with a beginning start bit, an
optional parity bit and one or more ending stop bits. The data format and baud
rate must match that of other equipment in order for communication to take
place. The figures list the data formats employed by the meter.
Start Bit and Data Bits
Data transmission always begins with the start bit. The start bit signals the
receiving device to prepare for reception of data. One bit period later, the least
significant bit of the ASCII encoded character is transmitted, followed by the
remaining data bits. The receiving device then reads each bit position as they
are transmitted.
Parity Bit
After the data bits, the parity bit is sent. The transmitter sets the parity bit to
a zero or a one, so that the total number of ones contained in the transmission
(including the parity bit) is either even or odd. This bit is used by the receiver
to detect errors that may occur to an odd number of bits in the transmission.
However, a single parity bit cannot detect errors that may occur to an even
number of bits. Given this limitation, the parity bit is often ignored by the
receiving device. The PAX meter ignores the parity bit of incoming data and
sets the parity bit to odd, even or none (mark parity) for outgoing data.
Stop Bit
The last character transmitted is the stop bit. The stop bit provides a single bit
period pause to allow the receiver to prepare to re-synchronize to the start of a
new transmission (start bit of next byte). The receiver then continuously looks
for the occurrence of the start bit. If 7 data bits and no parity is selected, then 2
stop bits are sent from the PAX.
* Voltage levels at the Receiver
space (active) a-b > +200 mVTXD,RXD; +3 to +25 V0
mark (idle) a-b < -200 mVTXD,RXD; -3 to -25 V1
INTERFACE STATE RS485*RS232*LOGIC
Character Frame Figure
6.8 MODULE 8 - REAL-TIME CLOCK PARAMETERS () - PAXCK
PARAMETER MENU
ª
«
SET TIME
This parameter sets the Time for the Real-Time Clock. Selecting will
display the sub-menu where the Time can be set or changed. The RTC Time is
entered in “Hours-Minutes”, 12-hour format, with AM/PM indication. When
the PAR key is pressed, the new Time is entered and begins running. The
“Seconds” always start from 00 when the Time is entered. Select to advance
to the next parameter without changing the Time.
ª
«
HOURS-MINUTES Am/Pm
ª
«
SET DATE
This parameter sets the Date for the Real-Time Clock. Selecting will
display the sub-menu where the Date can be set or changed. The RTC Date is
entered in “Month.Day.Year” format (two-digit values). When the PAR key is
pressed, the new Date is entered. Select to advance to the next parameter
without changing the Date.
ª
«
MONTH.DAY.YEAR
ª
«
SET DAY
Set the Day of the week for the Real-Time Clock.

D
2911-717-767-6511
TIME DISPLAY FORMAT
ª
«
DATE DISPLAY FORMAT
AUTO CHANGE FOR DAYLIGHT SAVINGS TIME
Select the format in which the Real-Time Clock Time will be displayed. The
format selections depict the range for the RTC Time display, and DO NOT
represent the current RTC Time. When the meter is operating in the Display
Mode, the RTC Time display is shown with no annunciator.
Selecting allows the meter to automatically adjust the RTC Time for
Daylight Savings Time. (Adjustment dates are U.S.A. standard only.) Avoid
setpoints that occur during adjustment (Sundays 1 to 3 AM).
Select the format in which the Real-Time Clock Date will be displayed. The
format selections depict the range for the RTC Date display, and DO NOT
represent the current RTC Date. When the meter is operating in the Display
Mode, the RTC Date display is indicated by the DAT annunciator.
ª
«
ª
«
ª
«
METER TYPE FOR CLOCK SYNCHRONIZATION
Time synchronization between multiple PAXCK meters can be accomplished
through a hardware interface on the Real-Time Clock option card. This RS485
type interface allows connection of up to 32 PAXCK meters in a two-wire
multidrop network, at distances up to 4000 ft. (See Section 4.6, Real-Time
Clock Wiring).
In a Synchronization network, one PAXCK meter is programmed as the Host
(), while all other meters are programmed as Slaves (). Once every
hour (at 30 min. past the hour), the Host meter outputs a time synchronization
pulse onto the network. Upon receiving the synchronization pulse, each Slave
meter automatically adjusts the Minutes and Seconds of its RTC Time setting to
synchronize with the Host. Synchronization, using the Real-Time Clock Wiring,
adjusts the Minutes and Seconds only, and does not change the Hours, AM/PM,
Day or Date settings in the Slave meter's RTC.
Full-time synchronization (hours, minutes and seconds) is possible for
PAXCKs that are connected in an RS485 network (RS485 Serial Option cards
required). In this configuration, one meter is designated as the Serial RTC
Master by setting the meter's address as 98 or 99 (see Serial Real-time Clock
Addressing in Master Module 7). Every hour (at 30 min past the hour), the
Serial RTC Master / Host will transmit the full time (Hours, minutes, seconds)
to all meters through the RS485 serial card wiring network. The time, date, or
day will also be transmitted and updated in the Slaves when changed in the
programming of the Serial RTC Master. Only one meter should be configured
as Master and that meter should also be configured as the Host.
ª
«
CALIBRATE REAL-TIME CLOCK
The Real-Time Clock circuit uses a crystal controlled oscillator for high
accuracy timekeeping. The oscillator is factory calibrated* and optimized for
25°C ambient temperature operation. Since the PAXCK is designed to operate
over a wide temperature range, and since the accuracy of a crystal oscillator
varies with ambient temperature, some drift in the RTC time may be observed
over an extended period. This is primarily seen in high or low temperature
installations. To compensate for the wide operating temperature range, a
calibration or “Offset” value can be entered, which effectively slows down or
speeds up the clock to maintain accurate timekeeping.
*NOTE: DO NOT ADJUST TRIM CAP ON RTC CARD!
12-59p 12-59 23-59
+B/ sun-31
IF RTC CLOCK GAINED TIME:
USE VALUE FROM THIS TABLE
31163
30158
29153
28148
27142
26137
25132
24
21111
127
20105
23
19100
121
1895
22
1790
ENTER THIS
OFFSET
VALUE
116
SECONDS
GAINED IN
30 DAYS
1684
1579
1474
1369
1263
1158
1053
0947
08
0526
42
0421
07
0316
37
0211
06
015
ENTER THIS
OFFSET
VALUE
32
SECONDS
GAINED IN
30 DAYS
ª
«
Selecting for the parameter displays the sub-menu where the
present Offset value can be viewed or changed. The tables below show the
value to enter, given the amount of time gained or lost in a 30-day period.
Values 00 and 32 provide no Offset, and are not shown in the tables.
to
IF RTC CLOCK LOST TIME:
USE VALUE FROM THIS TABLE
63327
62316
61306
60295
59285
58274
57264
56
53221
253
52211
55
51200
243
50190
54
49179
ENTER THIS
OFFSET
VALUE
232
SECONDS
LOST IN 30
DAYS
48169
47158
46148
45137
44127
43116
42105
4195
40
3753
84
3642
39
3532
74
3421
38
3311
ENTER THIS
OFFSET
VALUE
63
SECONDS
LOST IN 30
DAYS
To calibrate the RTC, install the meter in its normal operating
environment, and set the time based on a known accurate reference (such as
the WWV broadcast or the Atomic Clock reference which is available via the
internet). After 30 days of normal operation, compare the RTC time to the
reference, and note the amount of time gained or lost. Refer to the tables on
the next page for the proper Offset value to enter, given the amount of time
drift observed.

D
292 www.redlion.net
PARAMETER MENU
RESTORE FACTORY DEFAULTS
Use the RST and/or arrow keys to display and
press PAR. The meter will display and then returns
to . Press DSP key to return to the Display Mode.
This will overwrite all programmed user settings with the
Factory Default Settings shown in the Parameter Value Chart. For the PAXCK,
the Time and Date stored in the Real-Time Clock, as well as the RTC
Claibration Offset value, are NOT overwritten by this parameter. However, the
Time and Date Display Formats will revert back to the Factory Default Settings.
ª
«
TROUBLESHOOTING
For further assistance, contact technical support at the appropriate company numbers listed.
6.9 MODULE 9 - FACTORY SERVICE OPERATIONS ()
Enter the desired Display Intensity Level (0-15) by
using the arrow keys. The display will actively dim or
brighten as the levels are changed. This parameter also
appears in Quick Programming Mode when enabled.
DISPLAY INTENSITY LEVEL
ª
«
E-&7
PROBLEM REMEDIES
NO DISPLAY CHECK: Power level, power connections
PROGRAMMING LOCKED-OUT CHECK: User input set for program lock-out function is in Active state
ENTER: Security code requested
TIMER NOT RUNNING CHECK: Input wiring, Timer plug jumper setting, Timer input programming in Module 1,
input signal level, Timer Inhibited by Input B or a user input
CERTAIN DISPLAYS ARE LOCKED-OUT CHECK: Display Lock-out programming in Module 3
MODULES or PARAMETERS NOT ACCESSIBLE CHECK: Corresponding plug-in card installation, Program Lock-out/ Value Access
parameter programming in Module 3
USER INPUT NOT WORKING PROPERLY CHECK: User input wiring, user input plug jumper setting, user input signal level,
user input programming in Module 2
OUTPUTS NOT WORKING PROPERLY CHECK: Setpoint plug-in card installation, wiring, Setpoint programming in Module 6
REAL-TIME CLOCK NOT WORKING PROPERLY CHECK: RTC plug-in card installation, RTC programming in Module 8, check for
proper battery installation, replace battery. DO NOT ADJUST TRIM CAP ON RTC CARD!
SERIAL COMMUNICATIONS NOT WORKING CHECK: Serial plug-in card installation, Serial wiring, Serial settings in Module 7,
host settings
ERROR CODE ( )PRESS: Reset key (If unable to clear, contact factory.)
Shaded areas are model dependent.

D
2931-717-767-6511
5-OPEr Timer Operating Modes
DISPLAY PARAMETER USER SETTING
FACTORY
SETTING
USEr-1 USER INPUT 1 NO
USEr-2 USER INPUT 2 NO
USEr-3 USER INPUT 3 NO
F1 FUNCTION KEY 1 NO
F2 FUNCTION KEY 2 NO
rSt RESET KEY drSt-E
SEC-F1 NO
SEC-F2 SECONDARY FUNCTION KEY F2 NO
1-INP Timer Input Parameters
2-FNC User Input and Function Key Parameters
3-LOC Display and Program Lock-out Parameters
4-CNt Cycle Counter Parameters
DISPLAY PARAMETER USER SETTING
FACTORY
SETTING
Sp0f-2
t-dSP
tOUt-2
C-dSP
SP2 OFF VALUE ACCESS
TIMER DISPLAY LOCK-OUT
LOC
rEd
LOC
LOC
sp-3
rtC-d
LOC
LOC
t Strt
sp-4
SP0F-1
sp0f-3
rtC-t
TIMER START VALUE ACCESS
SP4 ON VALUE ACCESS
SP1 OFF VALUE ACCESS
SP3 OFF VALUE ACCESS
RTC TIME DISPLAY LOCK-OUT
LOC
LOC
LOC
LOC
LOC
C StOP
t StOP
sp0f-4
tOUt-1
tOUt-3
Sp-1
COUNTER STOP VALUE ACCESS
TIMER STOP ACCESS
SP4 OFF VALUE ACCESS
SP1 TIME-OUT VALUE ACCESS
SP3 TIME-OUT VALUE ACCESS
SP1 ON VALUE ACCESS
LOC
LOC
LOC
LOC
LOC
LOC
COdE
SEt-t
C Strt
tOUt-4
Sp-2
SECURITY CODE
RTC TIME SETTING ACCESS
COUNTER START VALUE ACCESS
SP4 TIME-OUT VALUE ACCESS
SP2 ON VALUE ACCESS
000
LOC
LOC
LOC
LOC
C Src NONE
VALUE
C dir
CYCLE COUNTER STOP VALUE (A) 000000
UP
C Strt
CYCLE COUNTER STOP VALUE (B)*
CYCLE COUNTER START VALUE (A)
OOOOOO
000000
C StOP
C p-UP
CYCLE COUNTER STOP (A & B*)
CYC. CNTR. RESET AT POWER-UP
CYCLE COUNTER START VALUE (B)*
NO
NO
000000
DISPLAY PARAMETER USER SETTING
FACTORY
SETTING
PARAMETER VALUE CHART Programmer ________________ Date ________
PAXCK Clock Timer Meter# _____________ Security Code __________
SP2 TIME-OUT VALUE ACCESS
SP3 ON VALUE ACCESS
RTC DATE DISPLAY LOCK-OUT
DISPLAY PARAMETER FACTORY
SETTING USER SETTING
rANGE TIMER RANGE SSSSSS
FILtEr
INP OP
TIMER INPUT FILTERING
TIMER INPUT OPERATION
LEVEL
t dir TIMING DIRECTION
t Strt TIMER START VALUE (A)
TIMER START VALUE (B)*
t StOP TIMER STOP (A & B*) NO
VaLUE TIMER STOP VALUE (A)
TIMER STOP VALUE (B)*
FLASH FLASH TIMER ANNUNCIATOR
InP-UP TIMER INPUT STATE AT POWER-UP
t p-UP TIMER RESET AT POWER-UP
* See Module 2, Exchanging Parameter Lists, for details on programming this value.
SECONDARY FUNCTION KEY F1
CYCLE COUNTER COUNT SOURCE
CYC. CNTR. COUNTING DIRECTION
CYCLE COUNT DISPLAY LOCK-OUT
SETPOINT 1 TIME-OUT VALUE
tOUt-1
000100
SETPOINT 1 OFF VALUE
SPOF-1
SETPOINT 1 ON VALUE
SP-1
NO
PREDEFINED TIMER OPER. MODE
t OPEr
USER SETTING
FACTORY
SETTING
PARAMETERDISPLAY
Shaded areas are model dependent.Shaded areas are model dependent.

D
294 www.redlion.net
7-SrL Serial Communication Parameters
DISPLAY PARAMETER FACTORY
SETTING USER SETTING
bAUd BAUD RATE 9600
dAtA DATA BITS 7
PAr PARITY BIT Odd
Addr METER UNIT ADDRESS 00
Abbr ABBREVIATED PRINTING NO
REAL-TIME CLOCK PRINT FORMAT YES
OPt PRINT OPTIONS
t-dSP TIMER DISPLAY YES
C-dSP CYCLE COUNTER DISPLAY NO
rtC-d RTC DATE DISPLAY NO
rtC-t RTC TIME DISPLAY NO
spNt SETPOINT VALUES NO
SPNtOF SETPOINT OFF/ TIME-OUT VALUES NO
PARAMETER USER SETTING
FACTORY
SETTING
dSP-t 12-59p
dSP-d DATE DISPLAY FORMAT 12-31
SyNC
Ch-dSt
sLAVE
N0
OFFSEt
CAL
00
TIME DISPLAY FORMAT
DISPLAY
AUTO TIME CHANGE FOR D.S.T.
SYNCHRONIZATION UNIT TYPE
CALIBRATE REAL-TIME CLOCK
RTC CALIBRATION OFFSET VALUE
9-fCS Factory Service Parameters
DISPLAY
DISPLAY INTENSITY LEVEL 3
d-LEV
FACTORY
SETTING USER SETTINGPARAMETER
Shaded areas are model dependent.Shaded areas are model dependent.
8-rtC Real-Time Clock Parameters
OUt-n
tOUt-n
SPOF-n
OFF-n
SP-n
ON-n
ASM-n
ACt-n
DISPLAY
NOrNOrNOrNOr
SETPOINT ANNUNCIATOR
POWER-UP STATE
NONONONO
OUTPUT RESET W/DISPLAY RESET
NONONONO
TIMER/COUNTER AUTO RESET
NOrNOrNOrNOr
OUTPUT LOGIC
VALUEVALUEVALUE
000100
000100
000100
VALUE
000100
VALUE
VALUE
000100
000100
000100
SETPOINT OFF VALUE (B)*
VALUE
SETPOINT OFF (B)*
TIME-OUT VALUE (B)*
TIME-OUT VALUE (A)
000100
SETPOINT OFF VALUE (A)
VALUE
SETPOINT OFF (A)
LAtCHLAtCHLAtCH
VALUE
NO
Mon-Fri
Mon-Fri
Mon-Fri
Mon-Fri
000000
000000
VALUE
VALUE
NONE
SP-4
USER SETTING
NO
Mon-Fri
Mon-Fri
Mon-Fri
Mon-Fri
000000
000000
VALUE
NONE
SP-3
LAtCH
FACTORY
SETTING
USER SETTING
FACTORY
SETTING
VALUE
NO
Mon-Fri
Mon-Fri
Mon-Fri
Mon-Fri
000000
000000
VALUE
VALUE
SETPOINT ON (B)*
NONE
SP-2
SETPOINT ACTION
USER SETTING
NO
TIMER STOP
Mon-FriDAILY OFF OCCURRENCE (B)*
Mon-FriDAILY OFF OCCURRENCE (A)
Mon-FriDAILY ON OCCURRENCE (B)*
Mon-FriDAILY ON OCCURRENCE (A)
000000
SETPOINT ON VALUE (B)*
000000
SETPOINT ON VALUE (A)
VALUE
SETPOINT ON (A)
NONE
SETPOINT ASSIGNMENT
SP-1
6-SPt Setpoint (Alarm) Parameters
FACTORY
SETTING
USER SETTING
FACTORY
SETTING
PARAMETER
PAXCK Application
A big application request has always been for
Real-Time Clocks to display time throughout the
plant. The challenge has been to keep all the
various clock locations synchronized with the
right time. With the new PAXCK Timer/Real-
Time Clock this problem is history. The clocks can
be provided in three different sizes, the PAXCK
(0.56 inch LEDs), the LPAXCK (1.5 inch LEDs),
or the EPAX (4 inch LEDs). You can mix and
match any number of the two versions, up to a
maximum of 32 units. Simply select one of the
units in the system as the host and the balance are
programmed as slaves. The host will send out a
synchronization pulse every hour to correct the
time on any clock unit wired in the system. Real-Time Clock Synchronization Network
* See Module 2, Exchanging Parameter Lists, for details on programming this value.

D
2951-717-767-6511
Timer Range
F1/F2 Keys
Timer Input
Operation
Timer Input
Filtering
Timing
Direction
Timer Start
Value
Timer Stop
Value
Flash Timer
Annunciator
Timer Input
State at
Power-up
Timer Reset
at Power-up
USER INPUTS FUNCTION KEYS
Timer Display
Lock-out
Cycle Counter
Display
Lock-out
Real-Time Clock
Date Display
Lock-out
Real-Time Clock
Time Display
Lock-out
Setpoint On
Value Access
Setpoint Off
Value Access
Setpoint
Time-Out
Value Access
Timer Start
Value Access
Cycle Counter
Count Source
Cycle Counter
Count DIrection
Cycle Counter
Start Value
Cycle Counter
Stop Value
Cycle Counter
Reset at Power-up
Predefined Timer
Operating Mode
Setpoint 1
On Value
Setpoint 1
Off Value
Setpoint 1 Time-
out Value
Setpoint
Select
Setpoint
Assignment
Setpoint
Action
Output
Logic
Setpoint
On
Setpoint Off Time-out
Value
Daily On
Occurrence
Daily Off
Occurrence
Timer Stop Timer/Counter
Auto Reset
Output Reset
w/Display
Reset
Setpoint
Annunciator
Power-up
State
Baud Rate Data Bit Parity Bit Meter
Address
Set Time
Factory Service
Code
= Setpoint number
Set Date Set Day Time Display
Format
Date Display
Format
Auto Change
for Daylight
Savings Time
Meter Type
for Clock
Synchronization
Calibrate
Real-Time
Clock
Abbreviated
Printing
Real-Time Clock
Print Formatting
Print
Options
Timer Stop
Value Access
Cycle Counter
Start Value
Access
Cycle Counter
Stop Value
Access
RTC Time
Set Access
Security
Code
Display
Intensity
Level
PAXTM/PAXCK PROGRAMMING QUICK OVERVIEW
PAR
PAR
PAR
PAR
PAR
PAR
PAR
PAR
PAR
Real-Time Clock parameters apply to the PAXCK only.

D
296 www.redlion.net
MODEL PAXCK - 1/8 DIN REAL-TIME CLOCK
This is a brief overview of the PAXCK. For complete specifications and programming information, see the
PAX 1/8 DIN Preset Timer (PAXTM) & Real-time Clock (PAXCK) Bulletin starting on page 268.
PAXCK SPECIFICATIONS
4. ANNUNCIATORS:
REAL-TIME/DATE DISPLAY (PAXCK):
Real-Time Display: 5 display formats
Hr/Min/Sec (12 or 24 Hr. format); Hr/Min (24 Hr.); Hr/Min (12 Hr. with
or without AM/PM indication)
Date Display: 7 display formats
Month/Day or Day/Month (numeric or 3-letter Month format);
Month/Day/Year or Day/Month/Year (all numeric);
Day of Week/Day (3-letter Day of Week format)
REAL-TIME CLOCK CARD: Field replaceable plug-in card
Time Accuracy: ± 5 secs./Month (1 min./year) with end-user calibration
Battery: Lithium 2025 coin cell
Battery Life Expectancy: 10 yrs. typical
Synchronization Interface: Two-wire multi-drop network (RS485
hardware), 32 units max., operates up to 4000 ft.
Isolation To Timer & User Input Commons: 500 Vrms for 1 min.
Working Voltage: 50 V. Not isolated from all other commons.
TIMER INPUTS A and B:
Logic inputs configurable as Current Sinking (active low) or Current
Sourcing (active high) via a single plug jumper.
Current Sinking (active low): VIL = 0.9 V max., 22KΩpull-up to +12
VDC.
Current Sourcing (active high): VIH = 3.6 V min., 22KΩpull-down, Max.
Continuous Input: 30 VDC.
Timer Input Pulse Width: 1 msec min.
Timer Start/Stop Response Time: 1 msec max.
Filter: Software filtering provided for switch contact debounce. Filter
enabled or disabled through programming.
If enabled, filter results in 50 msec start/stop response time for
successive pulses on the same input terminal.
z6-DIGIT 0.56" RED SUNLIGHT READABLE OR STANDARD
GREEN DISPLAY
z4 SEPARATE DISPLAYS (Timer, Counter, Real-Time Clock, and
Date)
zCYCLE COUNTING CAPABILITY
zPROGRAMMABLE FUNCTION KEYS/USER INPUTS
zFOUR SETPOINT ALARM OUTPUTS (W/Plug-in card)
zCOMMUNICATIONS AND BUS CAPABILITIES (W/Plug-in card)
zBUS CAPABILITIES: DEVICENET, MODBUS and PROFIBUS-DP
zCRIMSON PROGRAMMING SOFTWARE
zNEMA 4X/IP65 SEALED FRONT BEZEL
C
C
US LISTED
US LISTED
UL
R
IND. CONT. EQ.
51EB
Setpoint 4 OutputSP4 -
Setpoint 3 OutputSP3 -
Setpoint 2 OutputSP2 -
Setpoint 1 OutputSP1 -
Real-Time Clock Time Display-
Real-Time Clock Date DisplayDAT -
Cycle Counter DisplayCNT -
Timer DisplayTMR -

2971-717-767-6511
DIGITAL PANEL
METERS
E
The Trusted Source for
Innovative Control
Solutions

* Page 305/317 Page 329 Page 347
E
298 www.redlion.net
QUICK Specs
UNIVERSAL
3 1/2 Digit, .6" (15mm)
Reflective, Green and Red
Backlight LCD
5 Digit, .48" (12mm) Reflective,
Green and Red Backlight LCD
3 1/2 Digit, .56" (14mm)
Red LED
5 Digit, .56" (14mm)
Red LED
Display
Miniature DC
Volt/Current Meter
DC Volt/Current Meter with
Output Option Card Capability
1/8 DIN, AC or DC
Volt/Current Meter
1/8 DIN, DC
Volt/Current/Process Meter with
Setpoint Card Capability
Current (CUB4I)
0 to 199.9 µA DC through
199.9 mA DC
Voltage (CUB4V)
0 to 199.9 mV DC through
199.9 VDC
Current (CUB5I)
0 to 200 µA DC through
200 mA DC
Voltage (CUB5V)
0 to 200 mV DC through
200 VDC
Current (PAXLI)
(AC or DC)
0 to 199.9 µA through
1.999 A Voltage(PAXLV)
(AC or DC)
0 to 1.999 mV DC
through 300 VDC
Current: 0 to 200 µA through
200 mA DC
Voltage: 0 to 200 mV through
200 VDC
Process: 4 to 20 mA and
0 to 10 VDC
Zero Based Zero Based Zero Based Non Zero Based
No Single Form C Relay
Dual Sinking No Dual Form C Relays
No RS232
RS485 No No
No
User Input
Min/Max Memory
Custom Units Indicator
Custom Units Overlay
User Input
Excitation
Custom Units Overlay
Min/Max Memory
9 to 28 VDC 9 to 28 VDC 115/230 VAC
50 to 250 VAC
21.6 to 250 VDC
39mm (H) x 75mm (W) 39mm (H) x 75mm (W) 50mm (H) x 97mm (W) 50mm (H) x 97mm (W)
Zero/Offset
Setpoint
Capability
Communication
Capability
Dimensions
(Height)x (Width)
Other Features/
Options
Input Ranges
Description
CUB4V / I CUB5V / I PAXLV / I PAXLA
VOLT/CURRENT
Power Source
Page Number
Digital Panel Meters
Field Installable Option Card
*See website for product information.

Page 336 Page 342 Page 358 Page 378
3 1/2 Digit, .56" (14mm)
Red LED
3 1/2 Digit, .56" (14mm)
Red LED
4 1/2 Digit, .56" (14mm)
Red LED
4 1/2 Digit, .56" (14mm)
Standard Green or Sunlight
Readable Red LED,
Adjustable Intensity
Display
1/8 DIN, 5 amp AC
Current Meter
1/8 DIN, AC
Voltage Monitor 1/8 DIN, Universal DC Meter 1/8 DIN, Universal DC Meter with
Output Option Card Capability
0 to 5 A AC 0 to 600 VAC
Current
+/-200 µA DC to +/-2 A DC
Voltage
+/-200 mV DC to +/-300 VDC
Resistance
100 Ohm to 10K Ohm
Current
+/-200 µA DC to +/-2 A DC
Voltage
+/-200 mV DC to +/-300 VDC
Resistance
100 Ohm to 10K Ohm
Zero Based Zero Based Non Zero Based Non Zero Based
No Yes No
Form C Relay (Dual)
Form A Relay (Quad)
Solid State Outputs (Quad)
No No No
RS232
RS485
Modbus
DeviceNet
Profibus
Ethernet w/ICM8
Custom Units Overlay Custom Units Overlay
Tare, Min/Max Memory,
Integrator/Totalizer,
Linearizer, Excitation,
Custom Units Overlay
Analog Output , Tare,
Min/Max Memory,
Integrator/Totalizer,
Linearizer, Excitation,
Custom Units Overlay
115/230 VAC 115/230 VAC 85 to 250 VAC or
11 to 36 VDC
85 to 250 VAC or
11 to 36 VDC
50mm (H) x 97mm (W) 50mm (H) x 97mm (W) 50mm (H) x 97mm (W) 50mm (H) x 97mm (W)
Zero/Offset
Setpoint
Capability
Communication
Capability
Dimensions
(Height)x (Width)
Other Features/
Options
Input Ranges
Description
Power Source
E
2991-717-767-6511
QUICK Specs
PAXLIT PAXLHV DP5D PAXD
VOLT/CURRENT
Digital Panel Meters
Page Number
Field Installable Option Card
*See website for product information.

Page 405 Page 406 Page 410 Page 422
4 1/2 Digit, .56" (14mm)
Standard Green or Sunlight
Readable Red LED,
Adjustable Intensity
3 1/2 Digit, .6" (15mm)
Reflective, Green and
Red Backlight LCD
5 Digit, .48" (12mm)
Reflective, Green and
Red Backlight LCD
3 1/2 Digit, .56" (14mm)
Red LED
Display
1/8 DIN, AC True RMS Voltage
and Current Meter with Output
Option Card Capability
Miniature Current Loop and
Loop Powered Meters
DC Process meter with Output
Option Card Capability 1/8 DIN, Current Loop Meter
Current
+200 µA AC to +5 A AC
Voltage
+200 mV AC to +300 VAC
Current Loop
Dual Range
4 to 20 mA DC or
10 to 50 mA DC
0 to 10 VDC
4 to 20 mA DC or
10 to 50 mA DC
Current Loop
Dual Range
4 to 20 mA DC or
10 to 50 mA DC
Non Zero Based Non Zero Based Non Zero Based Non Zero Based
Yes No Single Form C Relay
Dual Sinking No
RS232
RS485
Modbus
DeviceNet
Profibus
Ethernet w/ICM8
No RS232
RS485 No
Analog Output , Tare,
Min/Max Memory,
Integrator/Totalizer,
Linearizer, Excitation,
Custom Units Overlay
No
User Input
Min/Max Memory
Custom Units Indicator
Custom Units Overlay,
Excitation
85 to 250 VAC or
11 to 36 VDC
9 to 28 VDC
(CUB4CL)
Derives Operating Power from
Current Loop
3 Volts Max. (CUB4LP)
9 to 28 VDC 85 to 250 VAC
50mm (H) x 97mm (W) 39mm (H) x 75mm (W) 39mm (H) x 75mm (W) 50mm (H) x 97mm (W)
Zero/Offset
Setpoint
Capability
Communication
Capability
Dimensions
(Height)x (Width)
Other Features/
Options
Input Ranges
Description
Power Source
300 www.redlion.net
QUICK Specs
PROCESS
PAXH CUB4CL / LP CUB5P PAXLCL
Page Number
VOLT/CURRENT
Digital Panel Meters
Field Installable Option Card
*See website for product information.

Page 430 Page 438 Page 439 Page 440
3 1/2 Digit, .56" (14mm)
Red LED
4 1/2 Digit, .56" (14mm)
Red LED
4 1/2 Digit, .56" (14mm)
Standard Green or Sunlight
Readable Red LED,
Adjustable Intensity
4 1/2 Digit, .56" (14mm)
Sunlight Readable Red LED,
Adjustable Intensity
Display
1/8 DIN, Process Volt Meter 1/8 DIN, Process Meter
1/8 DIN, Process Meter
with Output Option
Card Capability
1/8 DIN, Dual Input
Process Meter with Output
Option Card Capability
Process Volt
1 to 5 VDC
Process
Current/Voltage
0 to 20 mA DC or
0 to 10 VDC
Process
Current/Voltage
0 to 20 mA DC or
0 to 10 VDC
Dual Inputs
Process
Current/Voltage
0 to 20 mA DC/0 to 10 VDC
Non Zero Based Non Zero Based Non Zero Based Non Zero Based
No No
Form C Relay (Dual)
Form A Relay (Quad)
Solid State Outputs (Quad)
Form C Relay (Dual)
Form A Relay (Quad)
Solid State Outputs (Quad)
No No
RS232
RS485
Modbus
DeviceNet
Profibus
Ethernet w/ICM8
RS232
RS485
Modbus
DeviceNet
Profibus
Ethernet w/ICM8
Custom Units Overlay,
Excitation
Tare, Min/Max Memory,
Integrator/Totalizer,
Linearizer, Excitation, Custom
Units Overlay
Analog Output , Tare,
Min/Max Memory,
Integrator/Totalizer,
Linearizer, Excitation,
Custom Units Overlay
Analog Output , Tare,
Min/Max Memory,
Integrator/Totalizer,
Linearizer, Excitation,
Custom Units Overlay
85 to 250 VAC 85 to 250 VAC or
11 to 36 VDC
85 to 250 VAC or
11 to 36 VDC
85 to 250 VAC or
18 to 36 VDC
50mm (H) x 97mm (W) 50mm (H) x 97mm (W) 50mm (H) x 97mm (W) 50mm (H) x 97mm (W)
Zero/Offset
Setpoint
Capability
Communication
Capability
Dimensions
(Height)x (Width)
Other Features/
Options
Input Ranges
Description
Power Source
E
3011-717-767-6511
QUICK Specs
PROCESS
PAXLPV DP5P PAXP PAXDP
Digital Panel Meters
Page Number
Field Installable Option Card
*See website for product information.

Page 473 Page 481
E
302 www.redlion.net
QUICK Specs
3 1/2 Digit, .56" (14mm)
Red LED
4 1/2 Digit, .56" (14mm)
Standard Green or
Sunlight Readable Red LED,
Adjustable Intensity
Display
1/8 DIN, Strain
Gage Meter
1/8 DIN, Strain Gage Meter
with Output Option Card
Capability
Single-ended or
Differential Input
0 to 10 mV
through 1.999 A
+/- 24 mV DC or +/- 240 mV DC
Non Zero Based Non Zero Based
No
Form C Relay (Dual)
Form A Relay (Quad)
Solid State Outputs (Quad)
No
RS232
RS485
Modbus
DeviceNet
Profibus
Ethernet w/ICM8
Custom Units Overlay
Excitation,
Analog Output , Tare,
Min/Max Memory,
Integrator/Totalizer,
Linearizer, Excitation,
Custom Units Overlay
115/230 VAC 85 to 250 VAC or
11 to 36 VDC
50mm (H) x 97mm (W) 50mm (H) x 97mm (W)
Zero/Offset
Setpoint
Capability
Communication
Capability
Dimensions
(Height)x (Width)
Other Features/
Options
Input Ranges
Description
Power Source
STRAIN GAGE
PAXLSG PAXS
Digital Panel Meters
Page Number
Field Installable Option Card
*See website for product information.

E
3031-717-767-6511
CUBID/CUBVD
LPPI
APLIT/APLHV
APLCL/APLPV
APLSG
IMP
IMD
IMH
WHAT YOU’RE USING NOW CURRENT PRODUCT
CUB5I / CUB5VCUBID / CUBVD
QDisplay: 5 Digit, .48" (12 mm)
Reflective LCD
QPower Source: 9 to 28 VDC
QMeasurement: DC Current or Voltage
QDisplay: 3 1/2 Digit, .35" (9 mm)
Reflective LCD
QPower Source: 5 VDC or 7 to 28 VDC
QMeasurement: DC Current or Voltage
CUB4LPLPPI
QDisplay: 3 1/2 Digit, .6" (15 mm)
Reflective LCD
QPower Source: Loop Powered
QMeasurement: Current Loop
QDisplay: 3 1/2 Digit, .35" (9 mm)
Reflective LCD
QPower Source: Loop Powered
QMeasurement: Current Loop
MODEL NUMBER FEATURES MODEL NUMBER FEATURES
PAXLI / PAXLVAPLI / APLV
QDisplay: 3 1/2 Digit, .56" (14 mm)
Reflective LCD
QPower Source: 115/230 VAC
QMeasurement: AC or DC Current
and Voltage
QDisplay: 3 1/2 Digit, .56" (14 mm)
Red LED
QPower Source: 115/230 VAC
QMeasurement: AC or DC Current
and Voltage
PAXLIT / PAXLHVAPLIT / APLHV
QDisplay: 3 1/2 Digit, .56" (14 mm)
Red LED
QPower Source: 115/230 VAC
QMeasurement: 5 Amp AC/600 VAC
Panel Cut-Out Dimension Differences
QDisplay: 3 1/2 Digit, .56" (14 mm)
Red LED
QPower Source: 115/230 VAC
QMeasurement: 5 Amp AC Current/
600 VAC
PAXLCL / PAXLPVAPLCL / APLPV
QDisplay: 3 1/2 Digit, .56" (14 mm)
Red LED
QPower Source: 85 to 250 VAC
QMeasurement: Current Loop/Process
Volt
Panel Cut-Out Dimension Differences
QDisplay: 3 1/2 Digit, .56" (14 mm)
Red LED
QPower Source: 115/230 VAC
QMeasurement: Current Loop/
Process Volt
PAXLSGAPLSG
QDisplay: 3 1/2 Digit, .56" (14 mm)
Red LED
QPower Source: 115/230 VAC
QMeasurement: Strain Gage
Panel Cut-Out Dimension Differences
QDisplay: 3 1/2 Digit, .56" (14 mm)
Red LED
QPower Source: 115/230 VAC
QMeasurement: Strain Gage
PAXPIMP
QDisplay: 6 Digit, .56" (14 mm) Red LED
QPower Source: 85 to 250 VAC, 11 to
36 VDC, 24 VAC
QMeasurement: Process Signals
QRequires Appropriate Option Card
Panel Cut-Out Dimension Differences
QDisplay: 4 1/2 Digit, .56" (14 mm)
Red LED
QPower Source: 115/230 VAC
QMeasurement: Process Signals
PAXDIMD
QDisplay: 6 Digit, .56" (14 mm) Red LED
QPower Source: 85 to 250 VAC, 11 to
36 VDC, 24 VAC
QMeasurement: DC Current and
Voltage
QRequires Appropriate Option Card
QDisplay: 4 1/2 Digit, .56" (14 mm)
Red LED
QPower Source: 115/230 VAC
QMeasurement: DC Current and
Voltage
PAXHIMH
QDisplay: 6 Digit, .56" (14 mm) Red LED
QPower Source: 85 to 250 VAC, 11 to
36 VDC, 24 VAC
QMeasurement: AC Current and Voltage
QRequires Appropriate Option Card
Panel Cut-Out Dimension Differences
QDisplay: 4 1/2 Digit, .56" (14 mm)
Red LED
QPower Source: 115/230 VAC
QMeasurement: 5 Amp AC
PAXSIMS
QDisplay: 6 Digit, .56" (14 mm) Red LED
QPower Source: 85 to 250 VAC, 11 to
36 VDC, 24 VAC
QMeasurement: Strain Gage
QRequires Appropriate Option Card
Panel Cut-Out Dimension Differences
QDisplay: 4 1/2 Digit, .56" (14 mm)
Red LED
QPower Source: 115/230 VAC
QMeasurement: Strain Gage
REPLACEMENT Guide
Note: Refer to the current product literature, as some differences may exist.

E
304 www.redlion.net
This page intentionally left blank.

E
3051-717-767-6511
zFOUR SELECTABLE D.C. RANGES
0 to 200 mV, 2 V, 20 V, 200 V
zMINIMUM AND MAXIMUM DISPLAY CAPTURE
zLCD, REFLECTIVE OR RED/GREEN LED BACKLIGHTING
z0.48" (12.2 mm) HIGH DIGITS
zOPTIONAL SETPOINT OUTPUT MODULES
zOPTIONAL SERIAL COMMUNICATIONS MODULES (RS232 or RS485)
zOPERATES FROM 9 TO 28 VDC POWER SOURCE
zFRONT PANEL OR CRIMSON PROGRAMMABLE
zDISPLAY COLOR CHANGE CAPABILITY AT SETPOINT OUTPUT
zNEMA 4X/IP65 SEALED FRONT BEZEL
MODEL CUB5V - MINIATURE ELECTRONIC 5-DIGIT DC VOLTMETER
GENERAL DESCRIPTION
The CUB5 provides the user the ultimate in flexibility, from its complete user
programming to the optional setpoint control and communication capability.
The CUB5V accepts a DC Voltage input signal and provides a display in the
desired unit of measure. The meter also features minimum and maximum
display capture, display offset, units indicator, and programmable user input.
The display can be toggled either manually or automatically between the
selected displays.
The CUB5 display has 0.48" (12.2 mm) high digits. The LCD is available in
two versions, reflective and red/green backlight. The backlight version is user
selectable for the desired color and also has variable display intensity.
The capability of the CUB5 can be easily expanded with the addition of
option modules. Setpoint capability is field installable with the addition of the
setpoint output modules. Serial communications capability for RS232 or RS485
is added with a serial option module.
The CUB5 can be powered from an optional Red Lion Micro-Line/Sensor
Power Supply (MLPS1000), which attaches directly to the back of a CUB5. The
MLPS1 is powered from 85 to 250 VAC and provides up to 400 mA to drive the
unit and sensors.
VOLTAGE
The CUB5V is the DC Volt meter. It features 4 voltage input ranges, that are
selected by the user via a programming jumper and software input range
selection. The ranges consist of following: 0 to 200 mV, 2 V, 20 V, 200 V. Users
should select the appropriate voltage range that covers their maximum input.
SAFETY SUMMARY
All safety related regulations, local codes and instructions that appear in this
literature or on equipment must be observed to ensure personal safety and to
prevent damage to either the instrument or equipment connected to it. If
equipment is used in a manner not specified by the manufacturer, the protection
provided by the equipment may be impaired.
Do not use this meter to directly command motors, valves, or other actuators
not equipped with safeguards. To do so can be potentially harmful to persons or
equipment in the event of a fault to the meter.
CAUTION: Risk of Danger.
Read complete instructions prior to
installationand operation of the unit.
CAUTION: Risk of electric shock.
DIMENSIONS In inches (mm)
Note: Recommended minimum clearance (behind the panel) for mounting clip installation is 2.15" (54.6) H x 3.00" (76.2) W.
C
C
US LISTED
US LISTED
UL
R
IND. CONT. EQ.
51EB

E
306 www.redlion.net
1. DISPLAY: 5 digit LCD 0.48" (12.2 mm) high digits
CUB5VR00: Reflective LCD with full viewing angle
CUB5VB00: Transmissive LCD with selectable red or green LED backlight,
viewing angle optimized. Display color change capability with output state
when using an output module.
2. POWER: Input voltage range is +9 to +28 VDC with short circuit and input
polarity protection.
3. INPUT RANGES: Jumper Selectable
D.C. Voltages: 200 mV, 2 V, 20 V, 200 V
4. SIGNAL INPUTS:
5. OVERRANGE RATINGS, PROTECTION & INDICATION:
9 to 28 VDC power circuit is not isolated from the signal circuit.
Input Overrange Indication: “OLOL”.
Input Underrange Indication: “ULUL”.
Display Overrange/Underrange Indication: “.....”/“-.....”
6. A/D CONVERTER: 16 bit resolution
7. DISPLAY RESPONSE TIME: 500 msec min.
8. NORMAL MODE REJECTION: 60 dB 50/60 Hz
9. USER INPUT (USR): Programmable input. Connect terminal to common
(USR COMM) to activate function. Internal 10KΩpull-up resistor to +9 to
28 VDC.
Threshold Levels: VIL = 1.0 V max; VIH = 2.4 V min; VMAX = 28 VDC
Response Time: 5 msec typ.; 50 msec debounce (activation and release)
10. CONNECTIONS: Wire clamping screw terminals
Wire Strip Length: 0.3" (7.5 mm)
Wire Gage: 30-14 AWG copper wire
Torque: 5 inch-lbs (0.565 N-m) max.
11. MEMORY: Nonvolatile E2PROM memory retains all programming
parameters and max/min values when power is removed.
13. ENVIRONMENTAL CONDITIONS:
Operating Temperature Range for CUB5VR00: -35 to 75°C
Operating Temperature Range for CUB5VB00 depends on display color
and intensity level as per below:
Storage Temperature: -35 to 85°C
Operating and Storage Humidity: 0 to 85% max. relative humidity (non-
condensing)
Vibration According to IEC 68-2-6: Operational 5 to 500 Hz, in X, Y, Z
direction for 1.5 hours, 5 g’s.
Shock According to IEC 68-2-27: Operational 30 g, 11 msec in 3 directions.
Altitude: Up to 2000 meters
13. CONSTRUCTION: This unit is rated for NEMA 4X/IP65 requirements for
indoor use. Installation Category I, Pollution Degree 2. High impact plastic
case with clear viewing window. Panel gasket and mounting clip included.
14. CERTIFICATIONS AND COMPLIANCES:
SAFETY
UL Listed, File # E137808, UL508, CSA C22.2 No. 14-M95
LISTED by Und. Lab. Inc. to U.S. and Canadian safety standards
Type 4X Indoor Enclosure rating (Face only), UL50
IEC 61010-1, EN 61010-1: Safety requirements for electrical equipment
for measurement, control, and laboratory use, Part 1.
IP65 Enclosure rating (Face only), IEC 529
ELECTROMAGNETIC COMPATIBILITY
Emissions and Immunity to EN 61326: Electrical Equipment for
Measurement, Control and Laboratory use.
Notes:
1. Criterion A: Normal operation within specified limits.
15. WEIGHT: 3.2 oz (100 g)
GENERAL METER SPECIFICATIONS
ORDERING INFORMATION
TYPE MODEL NO. DESCRIPTION PART NUMBER
CUB5 CUB5V CUB5VB00
CUB5VR00
Optional Plug-in Cards
CUB5RLY
CUB5SNK
CUB5USB
CUB5COM
USB Programming Card for CUB5 Products
RS232 Serial Communications Card
RS485 Serial Communications Card
Dual Sinking Open Collector Output Card
Single Relay Output Card
CUB5USB0
CUB5COM2
CUB5COM1
CUB5SNK0
CUB5RLY0
Accessories
CBLUSB
SFCRD
CBLPROG
CBPRO
MLPS1
USB Programming Cable
Crimson 2 PC Configuration Software for Windows 98, ME, 2000, XP 1
RS232 Programming Cable (DB9-RJ11)
RS485 Programming Cable (DB9-RJ11)
Micro-Line Power Supply, 85 to 250 VAC
CBLUSB00
SFCRD200
CBLPROG0
CBPRO007
MLPS1000
DC Volt Meter with backlight display
DC Volt Meter with reflective display
MODEL
NO. DISPLAY COLOR
INPUT CURRENT
@ 9 VDC WITH
CUB5RLY0
CUB5VR00 --- 10 mA 40 mA
CUB5VB00 Red (max intensity) 85 mA 115 mA
CUB5VB00 Green (max intensity) 95 mA 125 mA
TEMPERATURE
1 & 2 -35 to 75°C
3-35 to 70°C
4-35 to 60°C
5-35 to 50°C
1 & 2 -35 to 75°C
3-35 to 65°C
5
4
-35 to 35°C
-35 to 50°C
INTENSITY LEVEL
Class AEN 55011Emissions
Emissions:
30 A/m
3 V/rms
Criterion A
Criterion A
EN 61000-4-8
EN 61000-4-6RF conducted interference
1 kV L-L,
Criterion AEN 61000-4-5Surge
1 kV signal
2 kV power
Criterion AEN 61000-4-4Fast transients (burst)
2 kV L&N-E power
10 V/m
Criterion AEN 61000-4-3Electromagnetic RF fields
8 kV air discharge
4 kV contact discharge
Criterion AEN 61000-4-2Electrostatic discharge
Immunity to Industrial Locations:
Power frequency magnetic fields
Green Display
1 Crimson 2 software is a free download from http://www.redlion.net/
Red Display
INPUT CURRENT
@ 9 VDC WITHOUT
CUB5RLY0
INPUT
RANGE
ACCURACY
@23 °C, less
than 85% RH
INPUT
IMPEDANCE
MAX
INPUT
SIGNAL
RESOLUTION TEMP.
COEFFICIENT
0.1% of span 1.027 MΩ75 VDC 10 µV 70 ppm / °C
2 VDC 0.1% of span 1.027 MΩ75 VDC .1 mV 70 ppm / °C
20 VDC 0.1% of span 1.027 MΩ250 VDC 1 mV 70 ppm / °C
200 VDC 0.1% of span 1.027 MΩ250 VDC 10 mV 70 ppm / °C
200 mVDC

E
3071-717-767-6511
ADDING OPTION CARDS
The CUB5 meters can be fitted with optional output cards and/or serial
communications cards. The details for the plug-in cards can be reviewed in the
specification section below. The plug-in cards, that are sold separately, can be
installed initially or at a later date.
WARNING: Disconnect all power to the unit before
installing Plug-in card.
Note: Measurement errors may occur if signal input common is shared with
another circuit common (ie, serial common, Dual Sinking Output option card,
or Power Supply common) on multiple units.
SINGLE RELAY CARD
Type: Single FORM-C relay
Isolation To Sensor & User Input Commons: 1400 Vrms for 1 min.
Working Voltage: 150 Vrms
Contact Rating: 1 amp @ 30 VDC resistive; 0.3 amp @ 125 VAC resistive
Life Expectancy: 100,000 minimum operations
Response Time:
Turn On Time: 4 msec max.
Turn Off Time: 4 msec max.
DUAL SINKING OUTPUT CARD
Type: Non-isolated switched DC, N Channel open drain MOSFET
Current Rating: 100 mA max.
VDS ON: 0.7 V @ 100 mA
VDS MAX: 30 VDC
Offstate Leakage Current: 0.5 mA max.
RS485 SERIAL COMMUNICATIONS CARD
Type: RS485 multi-point balanced interface (non-isolated)
Baud Rate: 300 to 38.4k
Data Format: 7/8 bits; odd, even, or no parity
Bus Address: 0 to 99; max 32 meters per line
Transmit Delay: Selectable (refer to CUB5COM bulletin)
RS232 SERIAL COMMUNICATIONS CARD
Type: RS232 half duplex (non-isolated)
Baud Rate: 300 to 38.4k
Data Format: 7/8 bits; odd, even, or no parity
OPTIONAL PLUG-IN CARDS
1.0 INSTALLING THE METER
INSTALLATION
The meter meets NEMA 4X/IP65 requirements when properly installed. The
unit is intended to be mounted into an enclosed panel. Prepare the panel cutout
to the dimensions shown. Remove the panel latch
from the unit. Slide the panel gasket over the rear
of the unit to the back of the bezel. The unit
should be installed fully assembled. Insert the
unit into the panel cutout.
While holding the unit in place, push the panel latch over the rear of the unit
so that the tabs of the panel latch engage in the slots on the case. The panel latch
should be engaged in the farthest forward slot possible. To achieve a proper seal,
tighten the latch screws evenly until the unit is snug in the panel (Torque to
approx. 28 to 36 in-oz [0.202 to 0.26 N-m]). Do not over-tighten the screws.
INSTALLATION ENVIRONMENT
The unit should be installed in a location that does not exceed the operating
temperature and provides good air circulation. Placing the unit near devices that
generate excessive heat should be avoided.
The bezel should only be cleaned with a soft cloth and neutral soap product.
Do NOT use solvents. Continuous exposure to direct sunlight may accelerate the
aging process of the bezel.
Do not use tools of any kind (screwdrivers, pens, pencils, etc.) to operate the
keypad of the unit.
2.0 SETTING THE JUMPERS
INPUT RANGE JUMPER
This jumper is used to select the proper input range. The input range selected
in programming must match the jumper setting. Select a range that is high
enough to accommodate the maximum input to avoid overloads. To access the
jumper, remove the rear cover of the meter.
Warning: Exposed line voltage exists on the circuit boards. Remove
all power to the meter and load circuits before accessing inside of
the meter.
REMOVING THE REAR COVER
To remove the rear cover, locate the cover locking tab below the 2nd and 3rd
input terminals. To release the tab, insert a small, flat blade screwdriver between
the tab and the plastic wall below the terminals. Inserting the screwdriver will
provide enough pressure to release the tab locks. To replace the cover, align the
cover with the input terminals and press down until the cover snaps into place.

E
308 www.redlion.net
WIRING OVERVIEW
Electrical connections are made via screw-clamp terminals located on the
back of the meter. All conductors should conform to the meter’s voltage and
current ratings. All cabling should conform to appropriate standards of good
installation, local codes and regulations. It is recommended that the power
supplied to the meter (DC or AC) be protected by a fuse or circuit breaker.
Strip the wire, leaving approximately 0.3" (7.5 mm) bare lead exposed
(stranded wires should be tinned with solder.) Insert the lead under the correct
screw-clamp terminal and tighten until the wire is secure. (Pull wire to verify
tightness.) Each terminal can accept up to one #14 AWG (2.55 mm) wire, two
#18 AWG (1.02 mm), or four #20 AWG (0.61 mm).
EMC INSTALLATION GUIDELINES
Although this meter is designed with a high degree of immunity to Electro-
Magnetic Interference (EMI), proper installation and wiring methods must be
followed to ensure compatibility in each application. The type of the electrical
noise, source or coupling method into the meter may be different for various
installations. The meter becomes more immune to EMI with fewer I/O
connections. Cable length, routing, and shield termination are very important
and can mean the difference between a successful or troublesome installation.
Listed below are some EMC guidelines for successful installation in an
industrial environment.
1. The meter should be mounted in a metal enclosure, which is properly
connected to protective earth.
2. Use shielded (screened) cables for all Signal and Control inputs. The shield
(screen) pigtail connection should be made as short as possible. The
connection point for the shield depends somewhat upon the application.
Listed below are the recommended methods of connecting the shield, in order
of their effectiveness.
a. Connect the shield only at the panel where the unit is mounted to earth
ground (protective earth).
b. Connect the shield to earth ground at both ends of the cable, usually when
the noise source frequency is above 1 MHz.
c. Connect the shield to common of the meter and leave the other end of the
shield unconnected and insulated from earth ground.
3. Never run Signal or Control cables in the same conduit or raceway with AC
power lines, conductors feeding motors, solenoids, SCR controls, and
heaters, etc. The cables should be ran in metal conduit that is properly
grounded. This is especially useful in applications where cable runs are long
and portable two-way radios are used in close proximity or if the installation
is near a commercial radio transmitter.
4. Signal or Control cables within an enclosure should be routed as far as possible
from contactors, control relays, transformers, and other noisy components.
5. In extremely high EMI environments, the use of external EMI suppression
devices, such as ferrite suppression cores, is effective. Install them on Signal
and Control cables as close to the unit as possible. Loop the cable through the
core several times or use multiple cores on each cable for additional protection.
Install line filters on the power input cable to the unit to suppress power line
interference. Install them near the power entry point of the enclosure. The
following EMI suppression devices (or equivalent) are recommended:
Ferrite Suppression Cores for signal and control cables:
Fair-Rite # 0443167251 (RLC# FCOR0000)
TDK # ZCAT3035-1330A
Steward # 28B2029-0A0
Line Filters for input power cables:
Schaffner # FN610-1/07 (RLC# LFIL0000)
Schaffner # FN670-1.8/07
Corcom # 1 VR3
Note: Reference manufacturer’s instructions when installing a line filter.
6. Long cable runs are more susceptible to EMI pickup than short cable runs.
Therefore, keep cable runs as short as possible.
7. Switching of inductive loads produces high EMI. Use of snubbers across
inductive loads suppresses EMI.
Snubber: RLC# SNUB0000.
4.0 WIRING THE METER
4.1 POWER WIRING
DC Power
+9 to +28 VDC: +VDC
Power Common: -VDC
CAUTION: 9 to 28 VDC
power circuit is not isolated
from the signal circuit.
4.2 USER INPUT WIRING
Sinking Logic
USR COMM
USR
The user input of the meter is
internally pulled up to +9 to +28 V
with 10 K resistance. The input is
active when it is pulled low (<0 .7 V).
Connect external switching device between the
User Input terminal and User Input Common.
}
The Plug-in cards are separately purchased option cards that perform specific
functions. The cards plug into the main circuit board of the meter
CAUTION: The Plug-in cards and main circuit board contain static
sensitive components. Before handling the cards, discharge
static charges from your body by touching a grounded bare
metal object. Ideally, handle the cards at a static controlled
clean workstation. Also, only handle the cards by the edges.
Dirt, oil or other contaminants that may contact the cards can
adversely affect circuit operation.
REMOVING THE REAR COVER
To remove the rear cover, locate the cover locking tab below the 2nd and 3rd
input terminals. To release the tab, insert a small, flat blade screwdriver between
the tab and the plastic wall below the terminals. Inserting the screwdriver will
provide enough pressure to release the tab locks. To replace the cover, align the
cover with the input terminals and press down until the cover snaps into place.
3.0 INSTALLING PLUG-INCARDS
Comms Card
Range Jumpers
Locking Tab
Setpoint Card

E
3091-717-767-6511
4.3 INPUT WIRING
CAUTION: Power input common is NOT isolated from user and input
commons. In order to preserve the safety of the meter application, the
power input common must be suitably isolated from hazardous live earth
referenced voltage; or input common must be at protective earth ground
potential. If not, hazardous voltage may be present at the signal or user inputs and
input common terminals. Appropriate considerations must then be given to the
potential of the user and input commons with respect to earth ground; and the
common of the plug-in cards with respect to input common.
Before connecting signal wires, the Input Range Jumper should be verified for proper
position.
4.4 SETPOINT (OUTPUT) WIRING
4.5 SERIAL COMMUNICATION WIRING
SINGLE SETPOINT RELAY PLUG-IN CARD
SERIAL COMMUNICATIONS PLUG-IN CARD RJ11 CONNECTOR PIN OUTS
Voltage Signal
(self powered)
ELECTRICAL CONNECTIONS
DUAL SETPOINT N-FET OPEN DRAIN PLUG-IN CARD ELECTRICAL CONNECTIONS
JUMPER
POSITION
MAX INPUT
VOLTAGE
200 mV ⁄2 VDC 75 VDC
20V ⁄200 VDC 250 VDC
Output Common is not isolated from DC Power Common. Load must be
wired between OSNK terminal and V+ of the load supply.

E
310 www.redlion.net
5.0 REVIEWING THE FRONT BUTTONS AND DISPLAY
PROGRAMMING MODE ENTRY (SEL BUTTON)
It is recommended all programming changes be made off line, or before
installation. The meter normally operates in the Display Mode. No parameters
can be programmed in this mode. The Programming Mode is entered by
pressing and holding the SEL button. If it is not accessible then it is locked by
either a security code, or a hardware lock.
MODULE ENTRY (SEL & RST BUTTONS)
The Programming Menu is organized into separate modules. These modules
group together parameters that are related in function. The display will alternate
between Pro and the present module. The RST button is used to select the desired
module. The displayed module is entered by pressing the SEL button.
MODULE MENU (SEL BUTTON)
Each module has a separate module menu (which is shown at the start of each
module discussion). The SEL button is pressed to advance to a particular
parameter to be changed, without changing the programming of preceding
parameters. After completing a module, the display will return to Pro NO.
Programming may continue by accessing additional modules.
SELECTION / VALUE ENTRY
For each parameter, the display alternates between the present parameter and
the selections/value for that parameter. The RST button is used to move through
the selections/values for that parameter. Pressing the SEL button, stores and
activates the displayed selection/value. This also advances the meter to the next
parameter.
For numeric values, press the RST button to access the value. The right hand
most digit will begin to flash. Pressing the RST button again increments the
digit by one or the user can hold the RST button and the digit will automatically
scroll. The SEL button will advance to the next digit. Pressing and holding the
SEL button will enter the value and move to the next parameter.
PROGRAMMING MODE EXIT (SEL BUTTON)
The Programming Mode is exited by pressing the SEL button with Pro NO
displayed. This will commit any stored parameter changes to memory and
return the meter to the Display Mode. (If power loss occurs before returning to
the Display Mode, verify recent parameter changes.)
PROGRAMMING TIPS
It is recommended to start with Module 1 and proceed through each module in
sequence. When programming is complete, it is recommended to record the
parameter programming and lock out parameter programming with the user input
or programming security code.
FACTORY SETTINGS
Factory Settings may be completely restored in Module 2. This is useful
when encountering programming problems.
ALTERNATING SELECTION DISPLAY
In the explanation of the modules, the following dual display with arrows will
appear. This is used to illustrate the display alternating between the parameter
on top and the parameter’s Factory Setting on the bottom. In most cases,
selections and values for the parameter will be listed on the right.
6.0 PROGRAMMING THE METER
OVERVIEW
PROGRAMMING MENU
Indicates Program Mode Alternating Display
Factory Settings are shown.
Parameter
Selection/Value
BUTTON DISPLAY MODE OPERATION ENTERING PROGRAM MODE PROGRAMMING MODE OPERATION
SEL Index display through enabled values Press and hold for 2 seconds to activate Store selected parameter and index to next parameter
RST Resets values (MIN/MAX) or outputs Advances through the program menu
Increments selected parameter value or selection
OPERATING MODE DISPLAY DESIGNATORS
MAX - Maximum display capture value
MIN - Minimum display capture value
“1” - To the right of the display indicates setpoint 1 output activated.
“2” - To the right of the display indicates setpoint 2 output activated.
Pressing the SEL button toggles the meter through the selected displays. If display scroll is enabled, the display will toggle automatically every four seconds between
the enabled display values.
ª
«
N0
USrIN

E
3111-717-767-6511
6.1 MODULE 1 - SIGNAL INPUT PARAMETERS (1-INP)
PARAMETER MENU
ª
«
200u
rAN6E
CUB5V INPUT RANGE
Select the input range that corresponds to the external signal. This selection
should be high enough to avoid input signal overload but low enough for the
desired input resolution. This selection and the position of the Input Range
Jumper must match.
ª
«
0
dECPt 0.000 0.00000.000.00
DISPLAY DECIMAL POINT
Select the decimal point location for the Input, MIN and MAX displays. This
selection also affects the dSP1 and dSP2 parameters and setpoint values.
ª
«
1
FILtr
FILTER SETTING
If the displayed value is difficult to read due to small process variations or
noise, increased levels of filtering will help to stabilize the display. Software
filtering effectively combines a fraction of the current input reading with a
fraction of the previous displayed reading to generate the new display.
Filter values represent no filtering (0), up to heavy filtering (3). A value of 1
for the filter uses 1/4 of the new input and 3/4 of the previous display to generate
the new display. A filter value of 2 uses 1/8 new and 7/8 previous. A filter value
of 3 uses 1/16 new and 15/16 previous.
0,1 2 3
ª
«
10
bANd
FILTER BAND
The filter will adapt to variations in the input signal. When the variation
exceeds the input filter band value, the filter disengages. When the variation
becomes less than the band value, the filter engages again. This allows for a
stable readout, but permits the display to settle rapidly after a large process
change. The value of the band is in display units, independent of the Display
Decimal Point position. A band setting of ‘0’ keeps the filter permanently
engaged at the filter level selected above.
0to 199 display units
ª
«
KEy
StYLE
SCALING STYLE
If Input Values and corresponding Display Values are known, the Key-in
(KEY) scaling style can be used. This allows scaling without the presence or
changing of the input signal. If Input Values have to be derived from the actual
input signal source or simulator, the Apply (APLY) scaling style must be used.
KEy APLY
ª
«
0.00
INP 1
INPUT VALUE FOR SCALING POINT 1
For Key-in (KEY) style, enter the first Input Value using the front panel buttons.
(The Input Range selection sets the decimal location for the Input Value).
For Apply (APLY) style, the meter shows the previously stored Input Value. To
retain this value, press the SEL button to advance to the next parameter. To
change the Input Value, press the RST button and apply the input signal to the
meter. Adjust the signal source externally until the desired Input Value appears.
Press the SEL button to enter the value being displayed.
0to 29999
ª
«
0.00
dSP 1
DISPLAY VALUE FOR SCALING POINT 1
-19999 to 99999
Enter the first Display Value by using the front panel buttons. This is the same
for KEY and APLY scaling styles. The decimal point follows the dECPt selection.
ª
«
100.00
INP 2
INPUT VALUE FOR SCALING POINT 2
0to 29999
For Key-in (KEY) style, enter the known second Input Value using the front
panel buttons.
For Apply (APLY) style, the meter shows the previously stored Input Value for
Scaling Point 2. To retain this value, press the SEL button to advance to the next
parameter. To change the Input Value, press the RST button and apply the input
signal to the meter. Adjust the signal source externally until the desired Input
Value appears. Press the SEL button to enter the value being displayed.
ª
«
100.00
dSP 2
DISPLAY VALUE FOR SCALING POINT 2
-19999 to 99999
Enter the second Display Value by using the front panel buttons. This is the
same for KEY and APLY scaling styles.
0.2u 200.00 mV
2u 2.0000 V
20.000 V
200.00 V
20u
200u
SELECTION RANGE
RESOLUTION
RANGE
RESOLUTION
SELECTION
ª
«
0.00
OFSEt
DISPLAY OFFSET VALUE
The display can be corrected with an offset value. This can be used to
compensate for signal variations or sensor errors. This value is automatically
updated after a Zero Display to show how far the display is offset. A value of
zero will remove the effects of offset.
-19999 to 19999
General Notes on Scaling
1. When using the Apply (APLY) scaling style, input values for scaling points
must be confined to the signal input imits of the selected range.
2. The same Input Value should not correspond to more than one Display Value.
(Example: 10 V can not equal 0 and 10.)
3. For input levels beyond the programmed Input Values, the meter extends the
Display Value by calculating the slope from the two coordinate pairs (INP1 /
dSP1 & INP2 / dSP2).

E
312 www.redlion.net
Entering Code 66 will overwrite all user settings with
the factory settings. The meter will display rESEt and then
return to CodE 00. Press the SEL button to exit the module.
Entering Code 55 will display the version (x.x) of the
meter. The display then returns to CodE 00. Press the SEL
button to exit the module.
6.2 MODULE 2 - SECONDARY FUNCTION PARAMETERS (2-SEC)
PARAMETER MENU
MIN DISPLAY ENABLE
USER INPUT ASSIGNMENT
Select the value(s) to which the User Input Function is assigned. The User
Input Assignment only applies if a selection of reset, display hold, or print and
reset is selected in the User Input Function menu.
MODEDISPLAY
No Function
NO
DESCRIPTION
User Input disabled.
Program Mode Lock-out
P-Loc
Zero Input
(Edge triggered)
ZErO Zero the Input Display value causing
Display Reading to be Offset.
COLOr
d-SEL
d-LEV
d-HLd
rESEt Resets the assigned value(s) to the
current input value.
HI-LO HI
dSPLO
See Programming Mode Access chart
(Module 3).
YESNO
MODE DESCRIPTIONDISPLAY
Setpoint 1 and 2 Reset
Setpoint 1 Reset
Setpoint 2 Reset
Print and Reset
Reset both setpoint 1 and 2 outputs.
Resets setpoint 1 output.
Resets setpoint 2 output.
Same as Print Request followed by a
momentary reset of the assigned value(s).
rSt12
rSt-1
rSt-2
P-r5t
Print Request
Serial transmit of the active parameters
selected in the Print Options menu
(Module 5).
Print
ª
«
2.0
HI-t
ª
«
NO
LO-En
ª
«
NO
FCS
MAX CAPTURE DELAY TIME
When the Input Display is above the present MAX value for the entered
delay time, the meter will capture that display value as the new MAX reading.
A delay time helps to avoid false captures of sudden short spikes.
ª
«
2.0
LO-t MIN CAPTURE DELAY TIME
When the Input Display is below the present MIN value for the entered delay
time, the meter will capture that display value as the new MIN reading. A delay
time helps to avoid false captures of sudden short spikes.
0.0 to 999.9 sec.
USER INPUT FUNCTION
ª
«
NO
USrIN
ª
«
dSP
U-ASN
ª
«
NO
HI-En
MAX DISPLAY ENABLE
0.0 to 999.9 sec.
Select yES to perform either of the Factory Service Operations shown below.
FACTORY SERVICE OPERATIONS
yESNO
YESNO
Enables the Maximum Display Capture capability.
Enables the Minimum Display Capture capability.
The CUB5V uses stored voltage calibration values to
provide accurate voltage measurements. Over time, the
electrical characteristics of the components inside the
meter will slowly change, with the result that the stored
calibration values no longer accurately define the input circuit. For most
applications, recalibration every 1 to 2 years should be sufficient.
Calibration of the CUB5V involves an input voltage calibration, which
should only be performed by individuals experienced in calibrating electronic
equipment. Allow a 30 minute warm up before performing any calibration
related procedures. The following procedures should be performed at an
ambient temperature of 15 to 35°C (59 to 95°F).
CAUTION: The accuracy of the calibration equipment will directly affect the
accuracy of the CUB5V.
Voltage Calibration
1. Connect a precision DC voltage source with an accuracy of 0.01% or better
to the INP+ (positive) and COMM (negative) terminals of the CUB5V. Set
the output of the voltage source to zero.
2. With the display at CodE 48, press and hold the SEL button for 2 seconds. Unit
will display CAL NO.
3. Press the RST button to select the range to be calibrated.
4. Press the SEL button. Display reads 0.0v.
5. With the voltage source set to zero (or a dead short applied to the input),
press SEL. Display reads CALC for about 8 seconds.
6. When the display reads the selected range, apply full-scale input signal for
the range. (Note: For 200V range, apply 100V as indicated on the display.)
Press SEL. Display reads CALC for about 8 seconds.
7. Repeat steps 3 through 6 for each input range to be calibrated. When display
reads CAL NO, press the SEL button to exit calibration.
CALIBRATION
ª
«
48
CodE
ª
«
66
CodE
ª
«
66
CodE
RESTORE FACTORY DEFAULT SETTINGS
VIEW VERSION DISPLAY
Backlight Color
(Edge Triggered)
Display Select
(Edge Triggered)
Display Intensity Level
(Edge Triggered)
Display Hold
Reset (Edge triggered)
Change backlight color with each
activation (backlight version only).
Advance once for each activation.
Increase intensity one level for each
activation (backlight version only).
Holds the assigned display, but all other
meter functions continue as long as
activated (maintained action).

E
3131-717-767-6511
The Security Code determines the programming mode and the accessibility
of programming parameters. This code can be used along with the Program
Mode Lock-out (P-Loc) in the User Input Function parameter (Module 1).
Two programming modes are available. Full Programming mode allows all
parameters to be viewed and modified. Quick Programming mode permits only
the Setpoint values to be modified, but allows direct access to these values
without having to enter Full Programming mode.
Programming a Security Code other than 0, requires this code to be entered
at the CodE prompt in order to access Full Programming mode. Depending on the
code value, Quick Programming may be accessible before the CodE prompt
appears (see chart).
PROGRAMMING SECURITY CODE
000 to 999
USER INPUT
FUNCTION
USER INPUT
STATE
SECURITY
CODE
MODE WHEN “SEL”
BUTTON IS PRESSED
FULL PROGRAMMING
MODE ACCESS
0Full Programming Immediate Access
not P-Loc ______ 1-99 Quick Programming
After Quick Programming
with correct code entry
at CodE prompt *
100-999 CodE prompt With correct code entry
at CodE prompt *
0Programming Lock No Access
Active 1-99 Quick Programming No Access
P-Loc
100-999 CodE prompt With correct code entry
at CodE prompt *
Not Active 0-999 Full Programming Immediate Access
* Entering Code 222 allows access regardless of security code.
6.3 MODULE 3 - DISPLAY AND FRONT PANEL BUTTON
PARAMETERS (3-dSP)
PARAMETER MENU
The yES selection allows the SEL button to toggle through the enabled
displays.
FRONT PANEL DISPLAY SELECT ENABLE (SEL)
This selection allows the RST button to reset the selected value(s).
FRONT PANEL RESET ENABLE (RST)
The yES selection allows the display to automatically scroll through the
enabled displays. The scroll rate is every 4 seconds. This parameter only appears
when the MAX or MIN displays are enabled.
DISPLAY SCROLL ENABLE
NOyES
dSPNO
HI
LO
HI-LO
NOyES
This parameter activates the Units Indicator on the display. There are two
methods of selecting the Indicator. List will present a group of Units
preprogrammed into the meter. Segments allows the user to choose which of the
segments should light.
UNITS INDICATOR SELECTION
LISt SEGS
OFF
Enter the desired display color, red or green. This parameter is active for
backlight units only.
DISPLAY COLOR (BACKLIGHT UNIT ONLY)
6rnrEd
Enter the desired Display Intensity Level (1-5). The display will actively dim
or brighten as levels are changed. This parameter is active for backlight units only.
DISPLAY INTENSITY LEVEL (BACKLIGHT UNIT ONLY)
1 to 5
ª
«
1
dSP-t
ª
«
yES
SEL
ª
«
dSP
rSt
ª
«
NO
ScroL
This parameter enables the RST button or user input to zero the input display
value, causing the display reading to be offset.
Note: For this parameter to operate, the RST button or User Input being used
must be set to dSP and the Input value must be displayed. If these conditions are
not met, the display will not zero.
ZERO DISPLAY WITH DISPLAY RESET
NOyES
ª
«
NO
ZErO
ª
«
OFF
UNItS
ª
«
rEd
COLOr
ª
«
5
d-LEV
ª
«
000
CodE
DISPLAY UPDATE TIME
This parameter sets the display update time in seconds.
1
0.5 2seconds

E
314 www.redlion.net
Enter the reset action of the output. See figure for details.
Auto = Automatic action; This action allows the output to automatically reset off
at the trigger points per the Setpoint Action shown in Setpoint Output
Figures. The “on” output may be manually reset (off) immediately by the
front panel RST button or user input.The output remains off until the trigger
point is crossed again.
LAtCH = Latch with immediate reset action; This action latches the output on at
the trigger point per the Setpoint Action shown in Setpoint Output Figures.
Latch means that the output can only be turned off by the front panel RST
6.4 MODULE 4 - SETPOINT OUTPUT PARAMETERS (4-SPt)
PARAMETER MENU
The Setpoint Output Parameters are only active when an optional output
module is installed in the meter.
Enter the setpoint (output) to be programmed. The nin the following
parameters will reflect the chosen setpoint number. After the chosen setpoint
is completely programmed, the display will return to SPSEL. Repeat steps for
each setpoint to be programmed. Select NO to exit the module. The number of
setpoints available is setpoint output card dependent.
SETPOINT SELECT
SP-2SP-1NO
ª
«
NO
SPSEL
ª
«
2
HYS-n
HYSTERESIS VALUE
ª
«
0.0
tOF-n
ª
«
0.0
tON-n
OFF TIME DELAY
ON TIME DELAY
OUTPUT RESET ACTION
LAtCHAuto L-dLY
0.0 to 599.9 Sec
0.0 to 599.9 Sec
ª
«
Auto
rSt-n
1 to 59999
Enter desired hysteresis value. See Setpoint Output Figures for visual
explanation of how setpoint output actions (balanced and unbalanced) are
affected by the hysteresis. When the setpoint is a control output, usually
balanced hysteresis is used. For alarm applications, usually unbalanced
hysteresis is used. For unbalanced hysteresis modes, the hysteresis functions on
the low side for high acting setpoints and functions on the high side for low
acting setpoints.
Note: Hysteresis eliminates output chatter at the switch point, while time delay
can be used to prevent false triggering during process transient events.
Enter the time value in seconds that the output is delayed from turning on
after the trigger point is reached. A value of 0.0 allows the meter to update the
output status per the response time listed in the Specifications.
Enter the time value in seconds that the output is delayed from turning off
after the trigger point is reached. A value of 0.0 allows the meter to update the
output status per the response time listed in the Specifications.
Select YES to enable Setpoint 2 and access the setup parameters. If NO is
selected, the unit returns to SPSEL and setpoint 2 is disabled.
SETPOINT 2 ENABLE
NOYES
ª
«
NO
Enb-2
Enter the action for the selected setpoint (output). See Setpoint Output
Figures for a visual detail of each action.
SETPOINT ACTION
ª
«
HI-Ub
Act-n LO-UbHI-UbLO-bL
HI-bL
LO-Ub =
HI-Ub =
LO-bL =
HI-bL =
Low Acting, with unbalanced hysteresis
High Acting, with unbalanced hysteresis
Low Acting, with balanced hysteresis
High Acting, with balanced hysteresis
High Acting (Balanced Hys) = HI-bL
Low Acting (Unbalanced Hys) = LO-Ub
Low Acting (Balanced Hys) = LO-bL
High Acting (Unbalanced Hys) = HI-Ub
SETPOINT VALUE
Enter the desired setpoint value. The decimal point position for the setpoint
and hysteresis values follow the selection set in Module 1.
-19999 to 99999
ª
«
10000
SPt-n

E
3151-717-767-6511
6.5 MODULE 5 - SERIAL SETUP PARAMETERS (5-SSEr)
The Serial Setup Parameters are only active when the optional RS232 or RS485 serial communications module is installed in the meter. Refer to the CUB5COM
bulletin for complete details on CUB5 serial communications.
PARAMETER MENU
button or user input manual reset, serial reset command or meter power
cycle. When the user input or RST button is activated (momentary action),
the corresponding “on” output is reset immediately and remains off until the
trigger point is crossed again. (Previously latched alarms will be off if power
up Display Value is lower than setpoint value.)
L-dLY = Latch with delay reset action; This action latches the output on at the
trigger point per the Setpoint Action shown in Setpoint Output Figures. Latch
means that the output can only be turned off by the front panel RST button
or user input manual reset, serial reset command or meter power cycle. When
the user input or RST button is activated (momentary action), the meter
delays the event until the corresponding “on” output crosses the trigger off
point. (Previously latched outputs are off if power up Display Value is lower
than setpoint value. During a power cycle, the meter erases a previous L-dLY
reset if it is not activated at power up.)
Setpoint Output Reset Actions
This parameter enables the RST button or user input to reset the output when
the display is reset.
Note: For this parameter to operate, the RST button or User Input being used
must be set to dSP and the Input value must be displayed. If these conditions are
not met, the output will not reset.
ª
«
YES
rEn-n
OUTPUT RESET WITH DISPLAY RESET
YESNO
When YES, the output is disabled (after a power up) until the trigger point is
crossed. Once the output is on, the output operates normally per the Setpoint
Action and Output Reset Action.
ª
«
NO
Stb-n
ª
«
NO
ChC-n
STANDBY OPERATION
YESNO
This parameter enables the backlight CUB5 to switch the backlight color when
the output state changes. This parameter is only active for the backlight version.
CHANGE DISPLAY COLOR w/OUTPUT STATE
YESNO

E
316 www.redlion.net
CUB5V PROGRAMMING QUICK OVERVIEW
Press and hold SEL button
to enter Programming Mode.

E
3171-717-767-6511
zFOUR SELECTABLE D.C. RANGES
200 μA, 2 mA, 20 mA, 200 mA
zMINIMUM AND MAXIMUM DISPLAY CAPTURE
zLCD, REFLECTIVE OR RED/GREEN LED BACKLIGHTING
z0.48" (12.2 mm) HIGH DIGITS
zOPTIONAL SETPOINT OUTPUT MODULES
zOPTIONAL SERIAL COMMUNICATIONS MODULES (RS232 or RS485)
zOPERATES FROM 9 TO 28 VDC POWER SOURCE
zFRONT PANEL OR CRIMSON PROGRAMMABLE
zDISPLAY COLOR CHANGE CAPABILITY AT SETPOINT OUTPUT
zNEMA 4X/IP65 SEALED FRONT BEZEL
MODEL CUB5I - MINIATURE ELECTRONIC 5-DIGIT DC CURRENT METER
GENERAL DESCRIPTION
The CUB5 provides the user the ultimate in flexibility, from its complete user
programming to the optional setpoint control and communication capability.
The CUB5I accepts a DC Current input signal and provides a display in the
desired unit of measure. The meter also features minimum and maximum
display capture, display offset, units indicator, and programmable user input.
The display can be toggled either manually or automatically between the
selected displays.
The CUB5 display has 0.48" (12.2 mm) high digits. The LCD is available in
two versions, reflective and red/green backlight. The backlight version is user
selectable for the desired color and also has variable display intensity.
The capability of the CUB5 can be easily expanded with the addition of
option modules. Setpoint capability is field installable with the addition of the
setpoint output modules. Serial communications capability for RS232 or RS485
is added with a serial option module.
The CUB5 can be powered from an optional Red Lion Micro-Line/Sensor
Power Supply (MLPS1000), which attaches directly to the back of a CUB5. The
MLPS1 is powered from 85 to 250 VAC and provides up to 400 mA to drive the
unit and sensors.
CURRENT
The CUB5I is the DC Current meter. It features 4 current input ranges, that
are selected by the user via a programming jumper and software input range
selection. The ranges consist of following: 200 μA, 2 mA, 20 mA, or 200 mA.
Users should select the appropriate current range that covers their maximum
signal input.
SAFETY SUMMARY
All safety related regulations, local codes and instructions that appear in this
literature or on equipment must be observed to ensure personal safety and to
prevent damage to either the instrument or equipment connected to it. If
equipment is used in a manner not specified by the manufacturer, the protection
provided by the equipment may be impaired.
Do not use this meter to directly command motors, valves, or other actuators
not equipped with safeguards. To do so can be potentially harmful to persons or
equipment in the event of a fault to the meter.
CAUTION: Risk of Danger.
Read complete instructions prior to
installationand operation of the unit.
CAUTION: Risk of electric shock.
DIMENSIONS In inches (mm)
Note: Recommended minimum clearance (behind the panel) for mounting clip installation is 2.15" (54.6) H x 3.00" (76.2) W.
C
C
US LISTED
US LISTED
UL
R
IND. CONT. EQ.
51EB

E
318 www.redlion.net
1. DISPLAY: 5 digit LCD 0.48" (12.2 mm) high digits
CUB5IR00: Reflective LCD with full viewing angle
CUB5IB00: Transmissive LCD with selectable red or green LED backlight,
viewing angle optimized. Display color change capability with output state
when using an output module.
2. POWER: Input voltage range is +9 to +28 VDC with short circuit and input
polarity protection. Must use an RLC model MLPS1 or a Class 2 or SELV
rated power supply.
3. INPUT RANGES: Jumper Selectable
D.C. Currents: 200 μA, 2 mA, 20 mA, or 200 mA
4. SIGNAL INPUTS:
5. OVERRANGE RATINGS, PROTECTION & INDICATION:
9 to 28 VDC power circuit is not isolated from the signal circuit.
Input Overrange Indication: “OLOL”.
Input Underrange Indication: “ULUL”.
Display Overrange/Underrange Indication: “.....”/“-.....”
6. DISPLAY RESPONSE TIME: 500 msec min.
7. NORMAL MODE REJECTION: 60 dB 50/60 Hz
8. USER INPUT (USR): Programmable input. Connect terminal to common
(USR COMM) to activate function. Internal 10KΩpull-up resistor to +9 to
28 VDC.
Threshold Levels: VIL = 1.0 V max; VIH = 2.4 V min; VMAX = 28 VDC
Response Time: 5 msec typ.; 50 msec debounce (activation and release)
9. MEMORY: Nonvolatile E2PROM memory retains all programming
parameters and max/min values when power is removed.
10. ENVIRONMENTAL CONDITIONS:
Operating Temperature Range for CUB5IR00: -35 to 75°C
Operating Temperature Range for CUB5IB00 depends on display color
and intensity level as per below:
Storage Temperature: -35 to 85°C
Operating and Storage Humidity: 0 to 85% max. relative humidity (non-
condensing)
Vibration According to IEC 68-2-6: Operational 5 to 500 Hz, in X, Y, Z
direction for 1.5 hours, 5 g’s.
Shock According to IEC 68-2-27: Operational 30 g, 11 msec in 3 directions.
Altitude: Up to 2000 meters
11. CONNECTIONS: Wire clamping screw terminals
Wire Strip Length: 0.3" (7.5 mm)
Wire Gage: 30-14 AWG copper wire
Torque: 5 inch-lbs (0.565 N-m) max.
12. CONSTRUCTION: This unit is rated for NEMA 4X/IP65 requirements for
indoor use. Installation Category I, Pollution Degree 2. High impact plastic
case with clear viewing window. Panel gasket and mounting clip included.
13. CERTIFICATIONS AND COMPLIANCES:
SAFETY
UL Recognized Component, File #E179259, UL61010A-1, CSA 22.2 No. 61010-1
Recognized to U.S. and Canadian requirements under the Component
Recognition Program of Underwriters Laboratories, Inc.
UL Listed, File # E137808, UL508, CSA C22.2 No. 14-M95
LISTED by Und. Lab. Inc. to U.S. and Canadian safety standards
Type 4X Indoor Enclosure rating (Face only), UL50
IECEE CB Scheme Test Certificate #US/9257C/UL
CB Scheme Test Report #E179259-V01-S02
Issued by Underwriters Laboratories, Inc.
IEC 61010-1, EN 61010-1: Safety requirements for electrical equipment
for measurement, control, and laboratory use, Part 1.
IP65 Enclosure rating (Face only), IEC 529
ELECTROMAGNETIC COMPATIBILITY
Emissions and Immunity to EN 61326: Electrical Equipment for Measurement,
Control and Laboratory use.
Notes:
1. Criterion A: Normal operation within specified limits.
14. WEIGHT: 3.2 oz (100 g)
GENERAL METER SPECIFICATIONS
ORDERING INFORMATION
TYPE MODEL NO. DESCRIPTION PART NUMBER
CUB5 CUB5I CUB5IB00
CUB5IR00
Optional Plug-in Cards
CUB5RLY
CUB5SNK
CUB5USB
CUB5COM
USB Programming Card for CUB5 Products 1
RS232 Serial Communications Card
RS485 Serial Communications Card
Dual Sinking Open Collector Output Card
Single Relay Output Card
CUB5USB0
CUB5COM2
CUB5COM1
CUB5SNK0
CUB5RLY0
Accessories
CBLUSB
SFCRD
CBLPROG
CBPRO
MLPS1
USB Programming Cable
Crimson 2 PC Configuration Software for Windows ME, 2000, XP 2
RS232 Programming Cable (DB9-RJ11)
RS485 Programming Cable (DB9-RJ11)
Micro-Line Power Supply, 85 to 250 VAC
CBLUSB00
SFCRD200
CBLPROG0
CBPRO007
MLPS1000
DC Current with backlight display
DC Current Meter with reflective display
MODEL
NO. DISPLAY COLOR
INPUT CURRENT
@ 9 VDC WITH
CUB5RLY0
CUB5IR00 --- 10 mA 40 mA
CUB5IB00 Red (max intensity) 85 mA 115 mA
CUB5IB00 Green (max intensity) 95 mA 125 mA
TEMPERATURE
1 & 2 -35 to 75°C
3-35 to 70°C
4-35 to 60°C
5-35 to 50°C
1 & 2 -35 to 75°C
3-35 to 65°C
5
4
-35 to 35°C
-35 to 50°C
INTENSITY LEVEL
Class AEN 55011Emissions
Emissions:
30 A/m
3 V/rms
Criterion A
Criterion A
EN 61000-4-8
EN 61000-4-6RF conducted interference
1 kV L-L,
Criterion AEN 61000-4-5Surge
1 kV signal
2 kV power
Criterion AEN 61000-4-4Fast transients (burst)
2 kV L&N-E power
10 V/m
Criterion AEN 61000-4-3Electromagnetic RF fields
8 kV air discharge
4 kV contact discharge
Criterion AEN 61000-4-2Electrostatic discharge
Immunity to Industrial Locations:
Power frequency magnetic fields
Green Display
1 The USB Programming Card is not UL Approved.
2Crimson 2 software is a free download from http://www.redlion.net/
Red Display
INPUT CURRENT
@ 9 VDC WITHOUT
CUB5RLY0
INPUT
RANGE
ACCURACY
@23 °C, less
than 85% RH
INPUT
IMPEDANCE
MAX
INPUT
SIGNAL
RESOLUTION TEMP.
COEFFICIENT
200 μA0.1% of span 1.111 KΩ15 mA 10 nA 70 ppm / °C
2 mA 0.1% of span 50 mA .1 µA 70 ppm / °C
20 mA 0.1% of span 11 Ω150 mA 1 µA 70 ppm / °C
200 mA 0.1% of span 1 Ω500 mA 10 µA 70 ppm / °C
111 Ω

E
3191-717-767-6511
ADDING OPTION CARDS
The CUB5 meters can be fitted with optional output cards and/or serial
communications cards. The details for the plug-in cards can be reviewed in the
specification section below. The plug-in cards, that are sold separately, can be
installed initially or at a later date.
WARNING: Disconnect all power to the unit before
installing Plug-in card.
Note: Measurement errors may occur if signal input common is shared with
another circuit common (ie, serial common, Dual Sinking Output option card,
or Power Supply common) on multiple units.
SINGLE RELAY CARD
Type: Single FORM-C relay
Isolation To Sensor & User Input Commons: 1400 Vrms for 1 min.
Working Voltage: 150 Vrms
Contact Rating: 1 amp @ 30 VDC resistive; 0.3 amp @ 125 VAC resistive
Life Expectancy: 100,000 minimum operations
Response Time:
Turn On Time: 4 msec max.
Turn Off Time: 4 msec max.
DUAL SINKING OUTPUT CARD
Type: Non-isolated switched DC, N Channel open drain MOSFET
Current Rating: 100 mA max.
VDS ON: 0.7 V @ 100 mA
VDS MAX: 30 VDC
Offstate Leakage Current: 0.5 mA max.
RS485 SERIAL COMMUNICATIONS CARD
Type: RS485 multi-point balanced interface (non-isolated)
Baud Rate: 300 to 38.4k
Data Format: 7/8 bits; odd, even, or no parity
Bus Address: 0 to 99; max 32 meters per line
Transmit Delay: Selectable (refer to CUB5COM bulletin)
RS232 SERIAL COMMUNICATIONS CARD
Type: RS232 half duplex (non-isolated)
Baud Rate: 300 to 38.4k
Data Format: 7/8 bits; odd, even, or no parity
OPTIONAL PLUG-IN CARDS
1.0 INSTALLING THE METER
INSTALLATION
The meter meets NEMA 4X/IP65 requirements when properly installed. The
unit is intended to be mounted into an enclosed panel. Prepare the panel cutout
to the dimensions shown. Remove the panel latch
from the unit. Slide the panel gasket over the rear
of the unit to the back of the bezel. The unit
should be installed fully assembled. Insert the
unit into the panel cutout.
While holding the unit in place, push the panel latch over the rear of the unit
so that the tabs of the panel latch engage in the slots on the case. The panel latch
should be engaged in the farthest forward slot possible. To achieve a proper seal,
tighten the latch screws evenly until the unit is snug in the panel (Torque to
approx. 28 to 36 in-oz [0.202 to 0.26 N-m]). Do not over-tighten the screws.
INSTALLATION ENVIRONMENT
The unit should be installed in a location that does not exceed the operating
temperature and provides good air circulation. Placing the unit near devices that
generate excessive heat should be avoided.
The bezel should only be cleaned with a soft cloth and neutral soap product.
Do NOT use solvents. Continuous exposure to direct sunlight may accelerate the
aging process of the bezel.
Do not use tools of any kind (screwdrivers, pens, pencils, etc.) to operate the
keypad of the unit.
2.0 SETTING THE JUMPERS
INPUT RANGE JUMPER
This jumper is used to select the proper input range. The input range selected
in programming must match the jumper setting. Select a range that is high
enough to accommodate the maximum signal input to avoid overloads. To
access the jumper, remove the rear cover of the meter.
Warning: Exposed line voltage exists on the circuit boards. Remove
all power to the meter and load circuits before accessing inside of
the meter.
REMOVING THE REAR COVER
To remove the rear cover, locate the cover locking tab below the 2nd and 3rd
input terminals. To release the tab, insert a small, flat blade screwdriver between
the tab and the plastic wall below the terminals. Inserting the screwdriver will
provide enough pressure to release the tab locks. To replace the cover, align the
cover with the input terminals and press down until the cover snaps into place.

E
320 www.redlion.net
WIRING OVERVIEW
Electrical connections are made via screw-clamp terminals located on the
back of the meter. All conductors should conform to the meter’s voltage and
current ratings. All cabling should conform to appropriate standards of good
installation, local codes and regulations. It is recommended that the power
supplied to the meter (DC or AC) be protected by a fuse or circuit breaker.
Strip the wire, leaving approximately 0.3" (7.5 mm) bare lead exposed
(stranded wires should be tinned with solder.) Insert the lead under the correct
screw-clamp terminal and tighten until the wire is secure. (Pull wire to verify
tightness.) Each terminal can accept up to one #14 AWG (2.55 mm) wire, two
#18 AWG (1.02 mm), or four #20 AWG (0.61 mm).
EMC INSTALLATION GUIDELINES
Although this meter is designed with a high degree of immunity to Electro-
Magnetic Interference (EMI), proper installation and wiring methods must be
followed to ensure compatibility in each application. The type of the electrical
noise, source or coupling method into the meter may be different for various
installations. The meter becomes more immune to EMI with fewer I/O
connections. Cable length, routing, and shield termination are very important
and can mean the difference between a successful or troublesome installation.
Listed below are some EMC guidelines for successful installation in an
industrial environment.
1. The meter should be mounted in a metal enclosure, which is properly
connected to protective earth.
2. Use shielded (screened) cables for all Signal and Control inputs. The shield
(screen) pigtail connection should be made as short as possible. The
connection point for the shield depends somewhat upon the application.
Listed below are the recommended methods of connecting the shield, in order
of their effectiveness.
a. Connect the shield only at the panel where the unit is mounted to earth
ground (protective earth).
b. Connect the shield to earth ground at both ends of the cable, usually when
the noise source frequency is above 1 MHz.
c. Connect the shield to common of the meter and leave the other end of the
shield unconnected and insulated from earth ground.
3. Never run Signal or Control cables in the same conduit or raceway with AC
power lines, conductors feeding motors, solenoids, SCR controls, and
heaters, etc. The cables should be ran in metal conduit that is properly
grounded. This is especially useful in applications where cable runs are long
and portable two-way radios are used in close proximity or if the installation
is near a commercial radio transmitter.
4. Signal or Control cables within an enclosure should be routed as far as possible
from contactors, control relays, transformers, and other noisy components.
5. In extremely high EMI environments, the use of external EMI suppression
devices, such as ferrite suppression cores, is effective. Install them on Signal
and Control cables as close to the unit as possible. Loop the cable through the
core several times or use multiple cores on each cable for additional protection.
Install line filters on the power input cable to the unit to suppress power line
interference. Install them near the power entry point of the enclosure. The
following EMI suppression devices (or equivalent) are recommended:
Ferrite Suppression Cores for signal and control cables:
Fair-Rite # 0443167251 (RLC# FCOR0000)
TDK # ZCAT3035-1330A
Steward # 28B2029-0A0
Line Filters for input power cables:
Schaffner # FN610-1/07 (RLC# LFIL0000)
Schaffner # FN670-1.8/07
Corcom # 1 VR3
Note: Reference manufacturer’s instructions when installing a line filter.
6. Long cable runs are more susceptible to EMI pickup than short cable runs.
Therefore, keep cable runs as short as possible.
7. Switching of inductive loads produces high EMI. Use of snubbers across
inductive loads suppresses EMI.
Snubber: RLC# SNUB0000.
4.0 WIRING THE METER
4.1 POWER WIRING
DC Power
+9 to +28 VDC: +VDC
Power Common: -VDC
CAUTION: 9 to 28 VDC
power circuit is not isolated
from the signal circuit.
4.2 USER INPUT WIRING
Sinking Logic
USR COMM
USR
The user input of the meter is
internally pulled up to +9 to +28 V
with 10 K resistance. The input is
active when it is pulled low (<0 .7 V).
Connect external switching device between the
User Input terminal and User Input Common.
}
The Plug-in cards are separately purchased option cards that perform specific
functions. The cards plug into the main circuit board of the meter
CAUTION: The Plug-in cards and main circuit board contain static
sensitive components. Before handling the cards, discharge
static charges from your body by touching a grounded bare
metal object. Ideally, handle the cards at a static controlled
clean workstation. Also, only handle the cards by the edges.
Dirt, oil or other contaminants that may contact the cards can
adversely affect circuit operation.
REMOVING THE REAR COVER
To remove the rear cover, locate the cover locking tab below the 2nd and 3rd
input terminals. To release the tab, insert a small, flat blade screwdriver between
the tab and the plastic wall below the terminals. Inserting the screwdriver will
provide enough pressure to release the tab locks. To replace the cover, align the
cover with the input terminals and press down until the cover snaps into place.
3.0 INSTALLING PLUG-INCARDS
Comms Card
Range Jumpers
Locking Tab
Setpoint Card

E
3211-717-767-6511
4.3 INPUT WIRING
CAUTION: Power input common is NOT isolated from user and input
commons. In order to preserve the safety of the meter application, the
power input common must be suitably isolated from hazardous live
earth referenced voltage; or input common must be at protective earth
ground potential. If not, hazardous voltage may be present at the signal or user
inputs and input common terminals. Appropriate considerations must then be given
to the potential of the user and input commons with respect to earth ground; and the
common of the plug-in cards with respect to input common.
Before connecting signal wires, the Input Range Jumper should be verified for
proper position.
4.4 SETPOINT (OUTPUT) WIRING
4.5 SERIAL COMMUNICATION WIRING
SINGLE SETPOINT RELAY PLUG-IN CARD
SERIAL COMMUNICATIONS PLUG-IN CARD RJ11 CONNECTOR PIN OUTS
Input Signal (self powered)
Series Loop (must use separate supply for sensor power
and each CUB5)
2 Wire With External Power
2 Wire With MLPS1 Power
2 Wire With Separate Sensor And CUB5 Power
ELECTRICAL CONNECTIONS
DUAL SETPOINT N-FET OPEN DRAIN PLUG-IN CARD
JUMPER
POSITION
MAX INPUT
CURRENT
200 µA15 mA
200 mA
20 mA
2 mA
500 mA
150 mA
50 mA
ELECTRICAL CONNECTIONS
Output Common is not isolated from DC Power Common. Load
must be wired between OSNK terminal and V+ of the load supply.

E
322 www.redlion.net
5.0 REVIEWING THE FRONT BUTTONS AND DISPLAY
PROGRAMMING MODE ENTRY (SEL BUTTON)
It is recommended all programming changes be made off line, or before
installation. The meter normally operates in the Display Mode. No parameters
can be programmed in this mode. The Programming Mode is entered by
pressing and holding the SEL button. If it is not accessible then it is locked by
either a security code, or a hardware lock.
MODULE ENTRY (SEL & RST BUTTONS)
The Programming Menu is organized into separate modules. These modules
group together parameters that are related in function. The display will alternate
between Pro and the present module. The RST button is used to select the desired
module. The displayed module is entered by pressing the SEL button.
MODULE MENU (SEL BUTTON)
Each module has a separate module menu (which is shown at the start of each
module discussion). The SEL button is pressed to advance to a particular
parameter to be changed, without changing the programming of preceding
parameters. After completing a module, the display will return to Pro NO.
Programming may continue by accessing additional modules.
SELECTION / VALUE ENTRY
For each parameter, the display alternates between the present parameter and
the selections/value for that parameter. The RST button is used to move through
the selections/values for that parameter. Pressing the SEL button, stores and
activates the displayed selection/value. This also advances the meter to the next
parameter.
For numeric values, press the RST button to access the value. The right hand
most digit will begin to flash. Pressing the RST button again increments the
digit by one or the user can hold the RST button and the digit will automatically
scroll. The SEL button will advance to the next digit. Pressing and holding the
SEL button will enter the value and move to the next parameter.
PROGRAMMING MODE EXIT (SEL BUTTON)
The Programming Mode is exited by pressing the SEL button with Pro NO
displayed. This will commit any stored parameter changes to memory and
return the meter to the Display Mode. (If power loss occurs before returning to
the Display Mode, verify recent parameter changes.)
PROGRAMMING TIPS
It is recommended to start with Module 1 and proceed through each module in
sequence. When programming is complete, it is recommended to record the
parameter programming and lock out parameter programming with the user input
or programming security code.
FACTORY SETTINGS
Factory Settings may be completely restored in Module 2. This is useful
when encountering programming problems.
ALTERNATING SELECTION DISPLAY
In the explanation of the modules, the following dual display with arrows will
appear. This is used to illustrate the display alternating between the parameter
on top and the parameter’s Factory Setting on the bottom. In most cases,
selections and values for the parameter will be listed on the right.
6.0 PROGRAMMING THE METER
OVERVIEW
PROGRAMMING MENU
Indicates Program Mode Alternating Display
Factory Settings are shown.
Parameter
Selection/Value
BUTTON DISPLAY MODE OPERATION ENTERING PROGRAM MODE PROGRAMMING MODE OPERATION
SEL Index display through enabled values Press and hold for 2 seconds to activate Store selected parameter and index to next parameter
RST Resets values (MIN/MAX) or outputs Advances through the program menu
Increments selected parameter value or selection
OPERATING MODE DISPLAY DESIGNATORS
MAX - Maximum display capture value
MIN - Minimum display capture value
“1” - To the right of the display indicates setpoint 1 output activated.
“2” - To the right of the display indicates setpoint 2 output activated.
Pressing the SEL button toggles the meter through the selected displays. If display scroll is enabled, the display will toggle automatically every four seconds between
the enabled display values.
ª
«
N0
USrIN

E
3231-717-767-6511
6.1 MODULE 1 - SIGNAL INPUT PARAMETERS (1-INP)
PARAMETER MENU
ª
«
0.02A
rAN6E
CUB5I INPUT RANGE
Select the input range that corresponds to the external signal. This selection
should be high enough to avoid input signal overload but low enough for the
desired input resolution. This selection and the position of the Input Range
Jumper must match.
ª
«
0.000
dECPt 0.000 0.00000.000.00
DISPLAY DECIMAL POINT
Select the decimal point location for the Input, MIN and MAX displays. This
selection also affects the dSP1 and dSP2 parameters and setpoint values.
ª
«
1
FILtr
FILTER SETTING
If the displayed value is difficult to read due to small process variations or
noise, increased levels of filtering will help to stabilize the display. Software
filtering effectively combines a fraction of the current input reading with a
fraction of the previous displayed reading to generate the new display.
Filter values represent no filtering (0), up to heavy filtering (3). A value of 1
for the filter uses 1/4 of the new input and 3/4 of the previous display to generate
the new display. A filter value of 2 uses 1/8 new and 7/8 previous. A filter value
of 3 uses 1/16 new and 15/16 previous.
0,1 2 3
ª
«
10
bANd
FILTER BAND
The filter will adapt to variations in the input signal. When the variation
exceeds the input filter band value, the filter disengages. When the variation
becomes less than the band value, the filter engages again. This allows for a
stable readout, but permits the display to settle rapidly after a large process
change. The value of the band is in display units, independent of the Display
Decimal Point position. A band setting of ‘0’ keeps the filter permanently
engaged at the filter level selected above.
0to 199 display units
ª
«
KEy
StYLE
SCALING STYLE
If Input Values and corresponding Display Values are known, the Key-in
(KEY) scaling style can be used. This allows scaling without the presence or
changing of the input signal. If Input Values have to be derived from the actual
input signal source or simulator, the Apply (APLY) scaling style must be used.
KEy APLY
ª
«
0.000
INP 1
INPUT VALUE FOR SCALING POINT 1
For Key-in (KEY) style, enter the first Input Value using the front panel buttons.
(The Input Range selection sets the decimal location for the Input Value).
For Apply (APLY) style, the meter shows the previously stored Input Value. To
retain this value, press the SEL button to advance to the next parameter. To
change the Input Value, press the RST button and apply the input signal to the
meter. Adjust the signal source externally until the desired Input Value appears.
Press the SEL button to enter the value being displayed.
0to 29999
ª
«
0.000
dSP 1
DISPLAY VALUE FOR SCALING POINT 1
-19999 to 99999
Enter the first Display Value by using the front panel buttons. This is the same
for KEY and APLY scaling styles. The decimal point follows the dECPt selection.
ª
«
10.000
INP 2
INPUT VALUE FOR SCALING POINT 2
0to 29999
For Key-in (KEY) style, enter the known second Input Value using the front
panel buttons.
For Apply (APLY) style, the meter shows the previously stored Input Value for
Scaling Point 2. To retain this value, press the SEL button to advance to the next
parameter. To change the Input Value, press the RST button and apply the input
signal to the meter. Adjust the signal source externally until the desired Input
Value appears. Press the SEL button to enter the value being displayed.
ª
«
10.000
dSP 2
DISPLAY VALUE FOR SCALING POINT 2
-19999 to 99999
Enter the second Display Value by using the front panel buttons. This is the
same for KEY and APLY scaling styles.
200uA 200.00 μA
0.002A 2.0000 mA
20.000 mA
200.00 mA
0.02A
0.2A
SELECTION RANGE
RESOLUTION
RANGE
RESOLUTION
SELECTION
ª
«
0.000
OFSEt
DISPLAY OFFSET VALUE
The display can be corrected with an offset value. This can be used to
compensate for signal variations or sensor errors. This value is automatically
updated after a Zero Display to show how far the display is offset. A value of
zero will remove the effects of offset.
-19999 to 19999
General Notes on Scaling
1. When using the Apply (APLY) scaling style, input values for scaling points
must be confined to the range limits shown.
2. The same Input Value should not correspond to more than one Display Value.
(Example: 20 mA can not equal 0 and 20.)
3. For input levels beyond the programmed Input Values, the meter extends the
Display Value by calculating the slope from the two coordinate pairs (INP1 /
dSP1 & INP2 / dSP2).

E
324 www.redlion.net
Entering Code 66 will overwrite all user settings with
the factory settings. The meter will display rESEt and then
return to CodE 00. Press the SEL button to exit the module.
6.2 MODULE 2 - SECONDARY FUNCTION PARAMETERS (2-SEC)
PARAMETER MENU
MIN DISPLAY ENABLE
USER INPUT ASSIGNMENT
Select the value(s) to which the User Input Function is assigned. The User
Input Assignment only applies if a selection of reset, display hold, or print and
reset is selected in the User Input Function menu.
MODEDISPLAY
No Function
NO
DESCRIPTION
User Input disabled.
Program Mode Lock-out
P-Loc
Zero Input
(Edge triggered)
ZErO Zero the Input Display value causing
Display Reading to be Offset.
COLOr
d-SEL
d-LEV
d-HLd
rESEt Resets the assigned value(s) to the
current input value.
HI-LO HI
dSPLO
See Programming Mode Access chart
(Module 3).
YESNO
MODE DESCRIPTIONDISPLAY
Setpoint 1 and 2 Reset
Setpoint 1 Reset
Setpoint 2 Reset
Print and Reset
Reset both setpoint 1 and 2 outputs.
Resets setpoint 1 output.
Resets setpoint 2 output.
Same as Print Request followed by a
momentary reset of the assigned value(s).
rSt12
rSt-1
rSt-2
P-r5t
Print Request
Serial transmit of the active parameters
selected in the Print Options menu
(Module 5).
Print
ª
«
2.0
HI-t
ª
«
NO
LO-En
ª
«
NO
FCS
MAX CAPTURE DELAY TIME
When the Input Display is above the present MAX value for the entered
delay time, the meter will capture that display value as the new MAX reading.
A delay time helps to avoid false captures of sudden short spikes.
ª
«
2.0
LO-t MIN CAPTURE DELAY TIME
When the Input Display is below the present MIN value for the entered delay
time, the meter will capture that display value as the new MIN reading. A delay
time helps to avoid false captures of sudden short spikes.
0.0 to 999.9 sec.
USER INPUT FUNCTION
ª
«
NO
USrIN
ª
«
dSP
U-ASN
ª
«
NO
HI-En
MAX DISPLAY ENABLE
0.0 to 999.9 sec.
Select yES to perform either of the Factory Service Operations shown below.
FACTORY SERVICE OPERATIONS
yESNO
YESNO
Enables the Maximum Display Capture capability.
Enables the Minimum Display Capture capability.
The CUB5I uses stored current calibration values to
provide accurate current measurements. Over time, the
electrical characteristics of the components inside the
CUB5I will slowly change with the result that the stored
calibration values no longer accurately define the input circuit. For most
applications, recalibration every 1 to 2 years should be sufficient.
Calibration of the CUB5I involves a current calibration which should only be
performed by individuals experienced in calibrating electronic equipment.
Allow 30 minute warm up before performing any calibration related procedure.
The following procedures should be performed at an ambient temperature of 15
to 35 °C (59 to 95 °F).
CAUTION: The accuracy of the calibration equipment will directly affect the
accuracy of the CUB5I.
Current Calibration
1. Connect the negative lead of a precision DC current source with an accuracy
of 0.01% or better to the COMM terminal. Leave the positive lead of the DC
current source unconnected.
2. With the display at CodE 48, press and hold the SEL button for 2 seconds. Unit
will display CAL NO
3. Press the RST button to select the range to be calibrated.
4. Press the SEL button. Display reads 0.0A
5. With the positive lead of the DC current source unconnected, press SEL.
Display reads CALC for about 8 seconds.
6. When the display reads the selected range, connect the positive lead of the DC
current source to INP+ and apply full-scale input signal for the range. (Note:
For 200 mA range, apply 100 mA as indicated on the display.)
7. Repeat steps 3 through 6 for each input range to be calibrated. When display
reads CAL NO, press the SEL button to exit calibration.
CALIBRATION
ª
«
48
CodE
ª
«
66
CodE
RESTORE FACTORY DEFAULT SETTINGS
Backlight Color
(Edge Triggered)
Display Select
(Edge Triggered)
Display Intensity Level
(Edge Triggered)
Display Hold
Reset (Edge triggered)
Change backlight color with each
activation (backlight version only).
Advance once for each activation.
Increase intensity one level for each
activation (backlight version only).
Holds the assigned display, but all other
meter functions continue as long as
activated (maintained action).
Entering Code 50 will display the version (x.x) of the
meter. The display then returns to CodE 00. Press the SEL
button to exit the module.
ª
«
50
CodE
VIEW VERSION DISPLAY

E
3251-717-767-6511
The Security Code determines the programming mode and the accessibility
of programming parameters. This code can be used along with the Program
Mode Lock-out (P-Loc) in the User Input Function parameter (Module 1).
Two programming modes are available. Full Programming mode allows all
parameters to be viewed and modified. Quick Programming mode permits only
the Setpoint values to be modified, but allows direct access to these values
without having to enter Full Programming mode.
Programming a Security Code other than 0, requires this code to be entered
at the CodE prompt in order to access Full Programming mode. Depending on the
code value, Quick Programming may be accessible before the CodE prompt
appears (see chart).
PROGRAMMING SECURITY CODE
000 to 999
USER INPUT
FUNCTION
USER INPUT
STATE
SECURITY
CODE
MODE WHEN “SEL”
BUTTON IS PRESSED
FULL PROGRAMMING
MODE ACCESS
0Full Programming Immediate Access
not P-Loc ______ 1-99 Quick Programming
After Quick Programming
with correct code entry
at CodE prompt *
100-999 CodE prompt With correct code entry
at CodE prompt *
0Programming Lock No Access
Active 1-99 Quick Programming No Access
P-Loc
100-999 CodE prompt With correct code entry
at CodE prompt *
Not Active 0-999 Full Programming Immediate Access
* Entering Code 222 allows access regardless of security code.
6.3 MODULE 3 - DISPLAY AND FRONT PANEL BUTTON
PARAMETERS (3-dSP)
PARAMETER MENU
The yES selection allows the SEL button to toggle through the enabled
displays.
FRONT PANEL DISPLAY SELECT ENABLE (SEL)
This selection allows the RST button to reset the selected value(s).
FRONT PANEL RESET ENABLE (RST)
The yES selection allows the display to automatically scroll through the
enabled displays. The scroll rate is every 4 seconds. This parameter only appears
when the MAX or MIN displays are enabled.
DISPLAY SCROLL ENABLE
NOyES
dSPNO
HI
LO
HI-LO
NOyES
This parameter activates the Units Indicator on the display. There are two
methods of selecting the Indicator. List will present a group of Units
preprogrammed into the meter. Segments allows the user to choose which of the
segments should light.
UNITS INDICATOR SELECTION
LISt SEGSOFF
Enter the desired display color, red or green. This parameter is active for
backlight units only.
DISPLAY COLOR (BACKLIGHT UNIT ONLY)
6rnrEd
Enter the desired Display Intensity Level (1-5). The display will actively dim
or brighten as levels are changed. This parameter is active for backlight units only.
DISPLAY INTENSITY LEVEL (BACKLIGHT UNIT ONLY)
1 to 5
ª
«
1
dSP-t
ª
«
yES
SEL
ª
«
dSP
rSt
ª
«
NO
ScroL
This parameter enables the RST button or user input to zero the input display
value, causing the display reading to be offset.
Note: For this parameter to operate, the RST button or User Input being used
must be set to dSP and the Input value must be displayed. If these conditions are
not met, the display will not zero.
ZERO DISPLAY WITH DISPLAY RESET
NOyES
ª
«
NO
ZErO
ª
«
OFF
UNItS
ª
«
rEd
COLOr
ª
«
5
d-LEV
ª
«
000
CodE
DISPLAY UPDATE TIME
This parameter sets the display update time in seconds.
1
0.5 2seconds

E
326 www.redlion.net
Enter the reset action of the output. See figure for details.
Auto = Automatic action; This action allows the output to automatically reset off
at the trigger points per the Setpoint Action shown in Setpoint Output
Figures. The “on” output may be manually reset (off) immediately by the
front panel RST button or user input.The output remains off until the trigger
point is crossed again.
LAtCH = Latch with immediate reset action; This action latches the output on at
the trigger point per the Setpoint Action shown in Setpoint Output Figures.
Latch means that the output can only be turned off by the front panel RST
6.4 MODULE 4 - SETPOINT OUTPUT PARAMETERS (4-SPt)
PARAMETER MENU
The Setpoint Output Parameters are only active when an optional output
module is installed in the meter.
Enter the setpoint (output) to be programmed. The nin the following
parameters will reflect the chosen setpoint number. After the chosen setpoint
is completely programmed, the display will return to SPSEL. Repeat steps for
each setpoint to be programmed. Select NO to exit the module. The number of
setpoints available is setpoint output card dependent.
SETPOINT SELECT
SP-2SP-1NO
ª
«
NO
SPSEL
ª
«
2
HYS-n
HYSTERESIS VALUE
ª
«
0.0
tOF-n
ª
«
0.0
tON-n
OFF TIME DELAY
ON TIME DELAY
OUTPUT RESET ACTION
LAtCHAuto L-dLY
0.0 to 599.9 Sec
0.0 to 599.9 Sec
ª
«
Auto
rSt-n
1 to 59999
Enter desired hysteresis value. See Setpoint Output Figures for visual
explanation of how setpoint output actions (balanced and unbalanced) are
affected by the hysteresis. When the setpoint is a control output, usually
balanced hysteresis is used. For alarm applications, usually unbalanced
hysteresis is used. For unbalanced hysteresis modes, the hysteresis functions on
the low side for high acting setpoints and functions on the high side for low
acting setpoints.
Note: Hysteresis eliminates output chatter at the switch point, while time delay
can be used to prevent false triggering during process transient events.
Enter the time value in seconds that the output is delayed from turning on
after the trigger point is reached. A value of 0.0 allows the meter to update the
output status per the response time listed in the Specifications.
Enter the time value in seconds that the output is delayed from turning off
after the trigger point is reached. A value of 0.0 allows the meter to update the
output status per the response time listed in the Specifications.
Select YES to enable Setpoint 2 and access the setup parameters. If NO is
selected, the unit returns to SPSEL and setpoint 2 is disabled.
SETPOINT 2 ENABLE
NOYES
ª
«
NO
Enb-2
Enter the action for the selected setpoint (output). See Setpoint Output
Figures for a visual detail of each action.
SETPOINT ACTION
ª
«
HI-Ub
Act-n LO-UbHI-UbLO-bL
HI-bL
LO-Ub =
HI-Ub =
LO-bL =
HI-bL =
Low Acting, with unbalanced hysteresis
High Acting, with unbalanced hysteresis
Low Acting, with balanced hysteresis
High Acting, with balanced hysteresis
High Acting (Balanced Hys) = HI-bL
Low Acting (Unbalanced Hys) = LO-Ub
Low Acting (Balanced Hys) = LO-bL
High Acting (Unbalanced Hys) = HI-Ub
SETPOINT VALUE
Enter the desired setpoint value. The decimal point position for the setpoint
and hysteresis values follow the selection set in Module 1.
-19999 to 99999
ª
«
10000
SPt-n

E
3271-717-767-6511
6.5 MODULE 5 - SERIAL SETUP PARAMETERS (5-SSEr)
The Serial Setup Parameters are only active when the optional RS232 or RS485 serial communications module is installed in the meter. Refer to the CUB5COM
bulletin for complete details on CUB5 serial communications.
PARAMETER MENU
button or user input manual reset, serial reset command or meter power
cycle. When the user input or RST button is activated (momentary action),
the corresponding “on” output is reset immediately and remains off until the
trigger point is crossed again. (Previously latched alarms will be off if power
up Display Value is lower than setpoint value.)
L-dLY = Latch with delay reset action; This action latches the output on at the
trigger point per the Setpoint Action shown in Setpoint Output Figures. Latch
means that the output can only be turned off by the front panel RST button
or user input manual reset, serial reset command or meter power cycle. When
the user input or RST button is activated (momentary action), the meter
delays the event until the corresponding “on” output crosses the trigger off
point. (Previously latched outputs are off if power up Display Value is lower
than setpoint value. During a power cycle, the meter erases a previous L-dLY
reset if it is not activated at power up.)
Setpoint Output Reset Actions
This parameter enables the RST button or user input to reset the output when
the display is reset.
Note: For this parameter to operate, the RST button or User Input being used
must be set to dSP and the Input value must be displayed. If these conditions are
not met, the output will not reset.
ª
«
YES
rEn-n
OUTPUT RESET WITH DISPLAY RESET
YESNO
When YES, the output is disabled (after a power up) until the trigger point is
crossed. Once the output is on, the output operates normally per the Setpoint
Action and Output Reset Action.
ª
«
NO
Stb-n
STANDBY OPERATION
YESNO
This parameter enables the backlight CUB5 to switch the backlight color when
the output state changes. This parameter is only active for the backlight version.
CHANGE DISPLAY COLOR w/OUTPUT STATE
ª
«
NO
ChC-n
YESNO

E
328 www.redlion.net
CUB5I PROGRAMMING QUICK OVERVIEW
Press and hold SEL button
to enter Programming Mode.

E
3291-717-767-6511
OFOUR MULTI-RANGE UNITS COVER:
199.9 μA to 1.999 A *, 199.9 mV (AC or DC)
1.999 V to 300 V (AC or DC)
O3 1/2-DIGIT, 0.56" (14.2 mm) HIGH LED DISPLAY W/POLARITY
OBUILT-IN SCALING PROVISIONS
OSELECTABLE DECIMAL POINT LOCATION
OAUTO ZEROING CIRCUITS
OOVER-RANGE INDICATION
ONEMA 4X/IP65 SEALED FRONT BEZEL
OOPTIONAL CUSTOM UNITS OVERLAY W/BACKLIGHT
*Accessory Shunts Available For Higher Current Ranges.
GENERAL DESCRIPTION
PAX Lite Current and Volt Meters are premium quality instruments designed
for tough industrial applications. With multi-range capability, built-in provision
for scaling, and DIP switch selectable decimal points, these meters offer the
ultimate in application flexibility. Four models cover your voltage and current
indicator needs. The meter can provide direct readout from pressure, speed or
flow transducers, or any other variable that can be translated to voltage or
current. The built-in scaling allows the display to be scaled to the desired
engineering unit.
The 3 ½ -digit bi-polar display (minus sign displayed when current or voltage
is negative) features a 0.56" high, 7-segment LEDs for easy reading. The meter
is also available with custom units label capability. Using the PAX label kit
(PAXLBK30), the selected label is installed behind the panel, keeping it safe
from washdown or other environmental conditions. A DIP switch is used to
control the backlight for the units label.
The meters have a NEMA 4X/IP65 sealed bezel and extensive testing of
noise effects to CE requirements, allowing the meter to provide a tough yet
reliable application solution.
SAFETY SUMMARY
All safety related regulations, local codes and instructions that appear in the
literature or on equipment must be observed to ensure personal safety and to
prevent damage to either the instrument or equipment connected to it. If
equipment is used in a manner not specified by the manufacturer, the protection
provided by the equipment may be impaired.
DEFINITION OF TERMS
INSTALLATION CATEGORY (overvoltage category) I, (CAT I):
Signal level, special equipment or parts of equipment, telecommunication,
electronic, etc. with smaller transient overvoltages than Installation
Category (overvoltage category) II. (See IEC 664 & IEC 61010)
INSTALLATION CATEGORY (overvoltage category) II, (CAT II):
Local level, appliances, portable equipment, etc. with smaller transient
overvoltages than Installation Category (overvoltage category) III. (See
IEC 664 & IEC 61010)
MODEL PAXLI - PAX LITE CURRENT METERS &
MODEL PAXLV - PAX LITE VOLTMETERS
DIMENSIONS In inches (mm) Note: Recommended minimum clearance (behind the panel) for mounting clip installation is
2.1" (53.4) H x 5.0" (127) W.
CAUTION: Risk of Danger.
Read complete instructions prior to
installation and operation of the unit.
CAUTION: Risk of electric shock.
C
C
US LISTED
US LISTED
UL
R
IND. CONT. EQ.
51EB

E
330 www.redlion.net
Ordering Information . . . . . . . . . . . . . . . . . . . 2
General Meter Specifications. . . . . . . . . . . . . 3
Accessories . . . . . . . . . . . . . . . . . . . . . . . . . 3
Installing the Meter . . . . . . . . . . . . . . . . . . . . 4
Setting the Jumpers and Switches . . . . . . . . 4
Wiring the Meter . . . . . . . . . . . . . . . . . . . . . . 5
Scaling the Meter . . . . . . . . . . . . . . . . . . . . . 6
Troubleshooting . . . . . . . . . . . . . . . . . . . . . . 7
Calibration . . . . . . . . . . . . . . . . . . . . . . . . . . 7
TABLE OFCONTENTS
ORDERING INFORMATION
PAXL 0
I - Current Input
V - Voltage Input
0
A - AC Input
D - DC Input
Meter Part Numbers
Accessories Part Numbers
APSCM100
APSCM010
PAXLBK30
100 Amp DC Current Shunt
10 Amp DC Current Shunt
Units Label Kit Accessory
APSCM
PAXLBK
Accessories
TYPE PART NUMBERSDESCRIPTIONMODEL NO.

E
3311-717-767-6511
1. DISPLAY: 3 1/2-digit, 0.56" (14.2 mm) high, 7-segment LED, (-) minus sign
displayed when current or voltage is negative. Decimal points inserted before
1st, 2nd, or 3rd least significant digits by DIP switch selection.
2. POWER: 115/230 VAC, switch selectable. Allowable power line variation
±10%, 50/60 Hz, 6 VA.
Isolation: 2300 Vrms for 1 min. between input and supply
Working Voltage: 300 V max. , CAT II
3. INPUT RANGES/RESOLUTION: (Selectable by jumper connections.):
Working Voltage: 300 V max. , CAT II
4. ACCURACY:
AC Voltmeters: ±(0.1% of Reading + 3 digits) (45-500 Hz)
AC Current Meters (45-500 Hz):
199.9 μA/199.9 mV, 1.999 mA, 19.99 mA: ±(0.1% of Reading + 3 digits)
199.9 mA: ±(0.15% of Reading + 3 digits)
1 A: ±(0.5% of Reading + 3 digits)
DC Voltmeters: ±(0.1% of Reading + 1 digit)
DC Current Meters:
199.9 μA/199.9 mV, 1.999 mA, 19.99 mA: ±(0.1% of Reading + 1 digit)
199.9 mA: ±(0.15% of Reading + 1 digit)
1.999 A: ±(0.5% of Reading + 1 digit)
Note: Any individual range may be recalibrated (scaled) to 0.1% accuracy
with appropriate calibration equipment.
5. OVER-RANGE INDICATION: on all modes is indicated by blanking 3
least significant digits.
6. MAX. VOLTAGE ON LOWEST INPUT RANGE: 75 VAC or DC (Both
voltmeters and current meters).
7. MAX. VOLTAGE ON TERMINAL BLOCK: 300 VAC or DC (Both
voltmeters and current meters).
8. MAX. CURRENTS (FOR CURRENT METERS):
199.9 μA through 19.99 mA: 10 times max. range current
199.9 mA: 1 A
1.999 A: 3 A
Caution: In circuits where fault currents can exceed the maximum shunt
current, a fast-blow fuse should be installed in series with the input
signal. Otherwise, a slow blow 10 amp fuse is recommended that will
allow for start-up over current situations, while still protecting the
instrument.
9. TEMPERATURE COEFFICIENTS:
Current meters Voltmeters
DC: ±100 PPM/°C DC: ±75 PPM/°C
AC: ±200 PPM/°C AC: ±150 PPM/°C
10. ENVIRONMENTAL CONDITIONS:
Operating Temperature: 0° to 60°C
Storage Temperature: -40° to 80°C
Operating and Storage Humidity: 85% max. relative humidity (non-
condensing)
Altitude: Up to 2000 meters
11. RESPONSE TIME TO STEP CHANGE INPUT: 1 sec. nominal
12. READING RATE: 2.5 readings/sec., nominal
13. NORMAL MODE REJECTION: 50 dB 50/60 Hz (DC units only)
14. COMMON MODE REJECTION: 110 dB DC or 50/60 Hz (DC units only)
15. COMMON MODE VOLTAGE (COMM. TO EARTH): 350 volt peak
16. CERTIFICATIONS AND COMPLIANCES:
SAFETY
UL Recognized Component, File #E179259, UL61010A-1, CSA C22.2
No. 61010-1
Recognized to U.S. and Canadian requirements under the Component
Recognition Program of Underwriters Laboratories, Inc.
UL Listed, File #E137808, UL508, CSA C22.2 No. 14-M95
LISTED by Und. Lab. Inc. to U.S. and Canadian safety standards
Type 4X Enclosure rating (Face only), UL50
IECEE CB Scheme Test Certificate #UL/8843A/UL
CB Scheme Test Report #04ME11209-20041018
Issued by Underwriters Laboratories, Inc.
IEC 61010-1, EN 61010-1: Safety requirements for electrical equipment
for measurement, control, and laboratory use, Part 1.
IP65 Enclosure rating (Face only), IEC 529
ELECTROMAGNETIC COMPATIBILITY:
Emissions and Immunity to EN 61326: Electrical Equipment for
Measurement, Control and Laboratory use.
Notes:
1. Criterion A: Normal operation within specified limits.
2. Criterion B: Temporary loss of performance from which the unit self-
recovers.
17. CONNECTIONS: High compression cage-clamp terminal block
Wire Strip Length: 0.3" (7.5 mm)
Wire Gage: 30-14 AWG copper wire
Torque: 4.5 inch-lbs (0.51 N-m) max.
18. CONSTRUCTION: This unit is rated for NEMA 4X/IP65 use. Installation
Category II, Pollution Degree 2. One piece bezel/case. Flame resistant. Panel
gasket and mounting clip included.
19. WEIGHT: 0.65 lbs. (0.24 Kg)
GENERAL METER SPECIFICATIONS
AC Voltmeters AC Current Meters DC Voltmeters DC Current Meters
0-1.999 V/1 mV 0-199.9 μA/0.1 μA±1.999 V/1 mV ±199.9 μA/0.1 μA
0-19.99 V/10 mV 0-1.999 mA/1 μA±19.99 V/10 mV ±1.999 mA/1 μA
0-19.99 mA/10 μA±199.9 V/100 mV ±19.99 mA/10 μA
0-300 V/1 V 0-199.9 mA/100 μA±300 V/1 V ±199.9 mA/100 μA
±1.999 A/1 mA
0-199.9 mV/100 μV±199.9 mV/100 μV
0-1.999 A/1 mA
ACCESSORIES
UNITS LABEL KIT (PAXLBK)
Each meter has a units indicator with backlighting that can be customized
using the Units Label Kit. The backlight is controlled by a DIP switch.
EXTERNAL CURRENT SHUNTS (APSCM)
To measure DC current signals greater than 2 ADC, a shunt must be used. The
APSCM010 current shunt converts a maximum 10 ADC signal into 100.0 mV.
The APSCM100 current shunt converts a maximum 100 ADC signal into 100.0
mV. The continuous current through the shunt is limited to 115% of the rating.
Class BEN 55011Emissions
Emissions:
0.5 cycle; 40 % variation
Criterion AEN 61000-4-11Voltage dip/interruptions
3 V/rms
Criterion AEN 61000-4-6RF conducted interference
1 kV L-L,
Criterion AEN 61000-4-5Surge
2 kV signal
2 kV power
Criterion BEN 61000-4-4Fast transients (burst)
2 kV L&N-E power
10 V/m
Criterion B EN 61000-4-3Electromagnetic RF fields
8 kV air discharge
4 kV contact discharge
Criterion AEN 61000-4-2Electrostatic discharge
Immunity to Industrial Locations:
0-199.9 V/100 mV

E
332 www.redlion.net
The meter has an input jumper and switches, which must be checked and/or
changed prior to applying power. To access the input jumper and switches,
remove the meter base from the case by firmly squeezing and pulling back on
the side rear finger tabs. This should lower the latch below the case slot (which
is located just in front of the finger tabs). It is recommended to release the latch
on one side, then start the other side latch.
Power Selection Switch
Caution: Insure the AC power selection switch is set for the
proper voltage before powering the meter. The meter is shipped
from the factory in the 230 VAC position.
Input Range Jumper
A jumper is used for selection of the voltage or current input range. Select the
proper input range that will be high enough to avoid input signal overload. It is
important that only one jumper position is used at a time. Avoid placing a jumper
across two different input ranges.
Set-Up DIP Switches
A DIP switch is located inside the meter. It is used for the selection of decimal
points, backlight annunciator, and scaling. Selecting the “ON” position enables
the function.
PAXLI Jumper Selection
JUMPER SELECTIONS
The indicates factory setting.
Main
Circuit
Board
SET-UP
DIP
SWITCHES
POWER SELECTION SWITCH
INPUT
RANGE
JUMPER
SCALING
POT
230
115
REAR TERMINALS
FRONT DISPLAY
2.0 SETTING THE JUMPERS AND SWITCHES
SWITCH FUNCTION
1Decimal Point 1 (000.0)
2Decimal Point 2 (00.00)
3Decimal Point 3 (0.000)
4Backlight Annunciator for Units Label
5Enables the Scaling Pot
1.0 INSTALLING THE METER
Installation
The PAX meets NEMA 4X/IP65 requirements when properly installed. The
unit is intended to be mounted into an enclosed panel. Prepare the panel cutout
to the dimensions shown. Remove the panel latch from the unit. Slide the panel
gasket over the rear of the unit to the back of
the bezel. The unit should be installed
fully assembled. Insert the unit into
the panel cutout.
While holding the unit in place, push the panel latch over the rear of the unit
so that the tabs of the panel latch engage in the slots on the case. The panel latch
should be engaged in the farthest forward slot possible. To achieve a proper seal,
tighten the latch screws evenly until the unit is snug in the panel (Torque to
approximately 7 in-lbs [79N-cm]). Do not over-tighten the screws.
Installation Environment
The unit should be installed in a location that does not exceed the maximum
operating temperature and provides good air circulation. Placing the unit near
devices that generate excessive heat should be avoided.
The bezel should be cleaned only with a soft cloth and neutral soap product.
Do NOT use solvents. Continuous exposure to direct sunlight may accelerate the
aging process of the bezel.
PANEL CUT-OUT

E
3331-717-767-6511
PAXLV Jumper Selection
Main
Circuit
Board
SET-UP
DIP
SWITCHES
POWER
SELECTION
SWITCH
INPUT RANGE
JUMPER
SCALING
POT
230
115
REAR TERMINALS
FRONT DISPLAY
JUMPER SELECTIONS
The indicates factory setting.
WIRING OVERVIEW
Electrical connections are made via screw-clamp terminals located on the
back of the meter. All conductors should conform to the meter’s voltage and
current ratings. All cabling should conform to appropriate standards of good
installation, local codes and regulations. It is recommended that power supplied
to the meter (AC) be protected by a fuse or circuit breaker.
When wiring the meter, compare the numbers embossed on the back of the
meter case against those shown in wiring drawings for proper wire position. Strip
the wire, leaving approximately 0.3" (7.5 mm) bare lead exposed (stranded wires
should be tinned with solder). Insert the lead under the correct screw-clamp
terminal and tighten until the wire is secure. (Pull wire to verify tightness.)
EMC INSTALLATION GUIDELINES
Although this meter is designed with a high degree of immunity to Electro-
Magnetic Interference (EMI), proper installation and wiring methods must be
followed to ensure compatibility in each application. The type of the electrical
noise, its source or the method of coupling into the unit may be different for
various installations. Listed below are some EMC guidelines for successful
installation in an industrial environment.
1. The meter should be mounted in a metal enclosure, which is properly
connected to protective earth.
2. Never run Signal or Control cables in the same conduit or raceway with AC
power lines, conductors feeding motors, solenoids, SCR controls, and
heaters, etc. The cables should be run in metal conduit that is properly
grounded. This is especially useful in applications where cable runs are long
and portable two-way radios are used in close proximity or if the installation
is near a commercial radio transmitter.
3. Signal or Control cables within an enclosure should be routed as far away as
possible from contactors, control relays, transformers, and other noisy
components.
4. In extremely high EMI environments, the use of external EMI suppression
devices, such as ferrite suppression cores, is effective. Install them on Signal
and Control cables as close to the unit as possible. Loop the cable through the
core several times or use multiple cores on each cable for additional protection.
Install line filters on the power input cable to the unit to suppress power line
interference. Install them near the power entry point of the enclosure. The
following EMI suppression devices (or equivalent) are recommended:
Ferrite Suppression Cores for signal and control cables:
Fair-Rite # 0443167251 (RLC #FCOR0000)
TDK # ZCAT3035-1330A
Steward #28B2029-0A0
Line Filters for input power cables:
Schaffner # FN610-1/07 (RLC #LFIL0000)
Schaffner # FN670-1.8/07
Corcom #1VR3
Note: Reference manufacturer’s instructions when installing a line filter.
5. Long cable runs are more susceptible to EMI pickup than short cable runs.
Therefore, keep cable runs as short as possible.
6. Switching of inductive loads produces high EMI. Use of snubbers across
inductive loads suppresses EMI.
Snubber: RLC#SNUB0000.
3.0 WIRING THE METER

E
334 www.redlion.net
4.0 SCALING THE METER
3.1 POWER WIRING
DIRECT VOLTMETER READOUT
When the application requires direct voltmeter readout, the Scale Switch
should remain in the “OFF” position. The Input Range Jumper is set to the
voltage range being applied. It is possible to select a range higher than being
applied to get lower resolution. The Decimal Point switches are set to resolution
of the selected Input Range Jumper.
SCALING VOLTMETER READOUT
In many industrial applications, a voltmeter is required to display a reading
in terms of PSI, RPM, or some other unit of measure. The signal voltage being
measured can be generated by a transducer that senses the variations and
delivers a linear output voltage. To provide the desired readout at the specified
voltage, the voltmeter must be scaled.
Place the Scale Switch in the “ON” position. This enables the Scale
Potentiometer which is accessible from the back of the meter. (Enabling the
Scale Potentiometer does NOT affect the calibration of the meter.) Place the
Decimal Point Switches to the proper location. To properly set the Input Range
Jumper, the Division Factor must be determined by first using the below formula.
After the Division Factor is calculated, use the Division Factor Range Selection
Chart to choose the proper Input Range Jumper setting. Apply the meter power
and the voltage signal. Adjust the Scale Potentiometer to the desired value.
This scaling only effects the span. There is no offset scaling. This means that
only zero voltage can display a value of zero.
DIVISION FACTOR FORMULA:
VT x D.D.P
.= D.F.
D.R.
WHERE:
VT = Maximum Transducer Output
D.D.P = Display Decimal Point
D.F. = Division Factor
D.R. = Desired Reading
D.D.P.
0.000 = 1 The Display Decimal Point
00.00 = 10 (D.D.P.) is determined by
000.0 = 100 the desired decimal point
0000 = 1000 placement in the readout.
After the Division Factor for the application has been calculated, the proper
voltage range jumper can be selected. Use the “Division Factor Range Selection
Chart” to choose the proper jumper setting.
DIVISION FACTOR RANGE SELECTION CHART
D.F. Use Input Position
0.1 to 1.2 Pos 1: 0-1.999 VDC
1.2 to 10.5 Pos 2: 0-19.99
10.5 to 100.5 Pos 3: 0-199.9
100.5 to 1300 Pos 4: 0-300
Note: Only one voltage jumper should be selected. Install the jumper before
the voltage signal is applied.
EXAMPLE: A relative humidity transducer delivers a 7.0 VDC voltage at a
relative humidity of 75%.
D.F. = VT x D.D.P.=7.0 x 1000 = 93.3
D.R. 75
This Division Factor is between 10.5 and 100.5, therefore jumper position 3
(199.9 V) is selected. The Scaling Potentiometer is then adjusted for the desired
readout at a known relative humidity.
3.2 INPUT SIGNAL WIRING
Before connecting signal wires, the Input Range Jumper should be verified for proper position.
PAXLI
Current Signal (self powered)
Terminal 4: + Amps DC/AC
Terminal 3: - Amps DC/AC
PAXLV
Voltage Signal (self powered)
Terminal 4: + Volts DC/AC
Terminal 3: - Volts DC/AC
BLOCK DIAGRAM PAXLV
PAXLV
AC Power
Terminal 1: VAC
Terminal 2: VAC

E
3351-717-767-6511
DIRECT CURRENT METER READOUT
When the application requires direct current meter readout, the Scale Switch
should remain in the “OFF” position. The Input Range Jumper is set to the
current range being applied. It is possible to select a range higher than being
applied to get lower resolution. The Decimal Point switches are set to resolution
of the selected Input Range Jumper.
SCALING CURRENT METER READOUT
In many industrial applications, a current meter is required to display a
reading in terms of PSI, RPM, or some other unit of measure. The signal voltage
being measured can be generated by a transducer that senses the variations and
delivers a linear output voltage. To provide the desired readout at the specified
current, the current meter must be scaled.
Place the Scale Switch in the “ON” position. This enables the Scale
Potentiometer which is accessible from the back of the meter. (Enabling the
Scale Potentiometer does NOT affect the calibration of the meter.) Place the
Decimal Point Switches to the proper location. The Input Range Jumper is set
to the current range being applied. Apply the meter power and the current signal.
Adjust the Scale Potentiometer to the desired value. Scaling to obtain a
numerical readout higher than the normal value of the current can also be
accomplished, in most cases, by selecting a lower current range. However, the
maximum current for the range must not be exceeded. (See Specifications for
maximum input currents.)
This scaling only effects the span. There is no offset scaling. This means that
only zero amps can display a value of zero.
EXAMPLE: The Pax Current Meter has been connected to measure a circuit
current to 120.0 mA maximum. However, in this application, the display is to
indicate percent of load current with 120.0 mA equivalent to 100.0 percent.
The scale potentiometer is adjusted to reduce the normal 120.0 mA signal
input display reading of 120.0 to indicate the desired reading of 100.0 on the
display. Scaling to obtain a numerical readout higher than the normal value
of the current can also be accomplished in most cases by selecting a lower
current range. However, the maximum current for the range must not be
exceeded. (See Specifications for maximum input currents.)
BLOCK DIAGRAM PAXLI
PROBLEM REMEDIES
NO DISPLAY CHECK: Power switch and line voltage
INCORRECT DISPLAY
OVER-RANGE INDICATION CHECK: Input jumper position
VERIFY: Input signal
CHECK: Input jumper position
CHECK: Scaling adjustment pot DIP switch position
ADJUST: Scaling pot
VERIFY: Input Signal
For further assistance, contact technical support at the appropriate company numbers listed.
PAXLI
5.0 TROUBLESHOOTING
6.0 CALIBRATION
The meter has been fully calibrated at the factory. Scaling to convert the input
signal to a desired display value is performed by enabling the scale pot DIP
switch. If the meter appears to be indicating incorrectly or inaccurately, refer to
Troubleshooting before attempting to calibrate the meter.
When recalibration is required (generally every 2 years), it should only be
performed by qualified technicians using appropriate equipment.
Input Calibration
WARNING: Calibration of this meter requires a signal source
with an accuracy of 0.01% or better and an external meter with an
accuracy of 0.005% or better.
Before starting, verify that the Input Range Jumper is set for the range to be
calibrated. Also verify that the precision signal source is connected and ready.
Allow a 30 minute warm-up period before calibrating the meter.
Then perform the following procedure:
1. Place jumper in 2 V range (PAXLV) or 2 mA range (PAXLI).
2. Set the DIP switch off to disable the scaling pot.
3. Apply half scale input signal.
4. Adjust calibration potentiometer as necessary for the display to read 1000
(ignore decimal point).
5. Apply zero signal and ensure display reads zero.
6. Apply full scale signal and ensure display reads 1999.
Note: Any individual range may be recalibrated (scaled) to 0.1% accuracy with
appropriate calibration equipment.

E
336 www.redlion.net
GENERAL DESCRIPTION
PAXLIT 5 Amp AC Current Meter provides the capability of measuring large
AC currents. The internal current shunt in the PAXLIT can measure up to 5
Amps AC current directly. Using an external current transformer, AC currents
of up to 1,999 Amps can be measured and displayed.
The PAXLIT can be scaled, using the scaling potentiometer, to display
between 200 and 1999 when measuring full scale current. Using the DIP switch
selectable decimal points, the display can be customized for direct readout for
practically any application.
The 3½-digit bi-polar display (minus sign displayed when current is
negative) features a 0.56" high, 7-segment LEDs for easy reading. The meter is
also available with custom units label capability. Using the PAX label kit
(PAXLBK30), the selected label is installed behind the panel, keeping it safe
from washdown or other environmental conditions. A DIP switch is used to
control the backlight for the units label.
The meters have a NEMA 4X/IP65 sealed bezel and extensive testing of
noise effects to CE requirements, allowing the meter to provide a tough yet
reliable application solution.
SAFETY SUMMARY
All safety related regulations, local codes and instructions that appear in the
literature or on equipment must be observed to ensure personal safety and to
prevent damage to either the instrument or equipment connected to it. If
equipment is used in a manner not specified by the manufacturer, the protection
provided by the equipment may be impaired.
DEFINITION OF TERMS
INSTALLATION CATEGORY (overvoltage category) I, (CAT I):
Signal level, special equipment or parts of equipment, telecommunication,
electronic, etc. with smaller transient overvoltages than Installation
Category (overvoltage category) II. (See IEC 664 & IEC 61010)
INSTALLATION CATEGORY (overvoltage category) II, (CAT II):
Local level, appliances, portable equipment, etc. with smaller transient
overvoltages than Installation Category (overvoltage category) III. (See
IEC 664 & IEC 61010)
MODEL PAXLIT - PAX LITE 5 AMP AC CURRENT METER
DIMENSIONS In inches (mm) Note: Recommended minimum clearance (behind the panel) for mounting clip installation is
2.1" (53.4) H x 5.0" (127) W.
CAUTION: Read complete
instructions prior to installation
and operation of the unit.
CAUTION: Risk of electric shock.
z5 AMP AC CURRENT INPUT*
z3 1/2-DIGIT, 0.56" (14.2 mm) HIGH LED DISPLAY
zSELECTABLE DECIMAL POINT LOCATION
zBUILT-IN SCALING PROVISIONS
zOVER-RANGE INDICATION
zNEMA 4X/IP65 SEALED FRONT BEZEL
zOPTIONAL CUSTOM UNITS OVERLAY W/BACKLIGHT
*Accessory Shunts Available For Higher Current Ranges.
C
C
US LISTED
US LISTED
UL
R
IND. CONT. EQ.
51EB

E
3371-717-767-6511
Accessories
Ordering Information . . . . . . . . . . . . . . . . . . . 2
General Meter Specifications. . . . . . . . . . . . . 3
Accessories . . . . . . . . . . . . . . . . . . . . . . . . . 3
Installing the Meter . . . . . . . . . . . . . . . . . . . . 4
Setting the Switches . . . . . . . . . . . . . . . . . . . 4
Wiring the Meter . . . . . . . . . . . . . . . . . . . . . . 5
Scaling the Meter . . . . . . . . . . . . . . . . . . . . . 5
Application . . . . . . . . . . . . . . . . . . . . . . . . . . 6
Troubleshooting . . . . . . . . . . . . . . . . . . . . . . 6
Calibration . . . . . . . . . . . . . . . . . . . . . . . . . . 6
TABLE OFCONTENTS
ORDERING INFORMATION
PAXL 0
0
IT - 5 Amp Current Meter
IT
Meter Part Numbers
Accessories Part Numbers
CT020050
CT005050
PAXLBK30
200:5 Amp Current Transformer
50:5 Amp Current Transformer
Units Label Kit Accessory
CT
PAXLBK
Accessories
TYPE PART NUMBERSDESCRIPTIONMODEL NO.

E
338 www.redlion.net
1. DISPLAY: 3 1/2-digit, 0.56" (14.2 mm) high, 7-segment LED. Decimal points
inserted before 1st, 2nd, or 3rd least significant digits by DIP switch selection.
2. POWER: 115/230 VAC, switch selectable. Allowable power line variation
±10%, 50/60 Hz, 6 VA.
Isolation: 2300 Vrms for 1 min. between input and supply
Working Voltage: 300 V max., CAT II
3. SIGNAL INPUT:
Range: 0 to 5 Amps AC @ 45 to 400 Hz
Resolution: 2.5 mA
Working Voltage: 300 V max., CAT II
4. ACCURACY: ±(0.5% of reading + 5 digits).
5. OVER-RANGE INDICATION: is indicated by blanking 3 least significant
digits.
6. MAX SHUNT CURRENT: 50 Amps for 1 sec.; 8 Amps continuous.
Caution: In circuits where fault currents can exceed the maximum shunt
current, a fast-blow fuse should be installed in series with the input signal.
Otherwise, a slow blow 8 Amp fuse is recommended that will allow for
start-up over current situations, while still protecting the instrument.
7. ENVIRONMENTAL CONDITIONS:
Operating Temperature: 0° to 60°C
Storage Temperature: -40° to 80°C
Operating and Storage Humidity: 85% max. relative humidity (non-
condensing)
Altitude: Up to 2000 meters
8. RESPONSE TIME TO STEP CHANGE INPUT: 1 sec. nominal
9. READING RATE: 2.5 readings/sec., nominal
10. CERTIFICATIONS AND COMPLIANCES:
SAFETY
UL Recognized Component, File # E179259, UL61010A-1, CSA C22.2
No. 1010-1
Recognized to U.S. and Canadian requirements under the Component
Recognition Program of Underwriters Laboratories, Inc.
UL Listed, File # E137808, UL508, CSA C22.2 No. 14-M95
LISTED by Und. Lab. Inc. to U.S. and Canadian safety standards
Type 4X Enclosure rating (Face only), UL50
IECEE CB Scheme Test Certificate # UL/8843A/UL
CB Scheme Test Report # 04ME11209-20041018
Issued by Underwriters Laboratories, Inc.
IEC 61010-1, EN 61010-1: Safety requirements for electrical
equipment for measurement, control, and laboratory use, Part 1.
IP65 Enclosure rating (Face only), IEC 529
ELECTROMAGNETIC COMPATIBILITY
Emissions and Immunity to EN 61326: Electrical Equipment for
Measurement, Control and Laboratory use.
Notes:
1. Criterion A: Normal operation within specified limits.
2. Criterion B: Temporary loss of performance from which the unit self-
recovers.
11. CONNECTIONS: High compression cage-clamp terminal block
Wire Strip Length: 0.3" (7.5 mm)
Wire Gage: 30-14 AWG copper wire
Torque: 4.5 inch-lbs (0.51 N-m) max.
12. CONSTRUCTION: This unit is rated for NEMA 4X/IP65 use. Installation
Category II, Pollution Degree 2. One piece bezel/case. Flame resistant. Panel
gasket and mounting clip included.
13. WEIGHT: 0.65 lbs. (0.24 Kg)
GENERAL METER SPECIFICATIONS
ACCESSORIES
UNITS LABEL KIT (PAXLBK)
Each meter has a units indicator with backlighting that can be customized
using the Units Label Kit. The backlight is controlled by a DIP switch.
Class BEN 55011Emissions
Emissions:
0.5 cycle; 40 % variation
Criterion AEN 61000-4-11Voltage dip/interruptions
3 V/rms
Criterion AEN 61000-4-6RF conducted interference
1 kV L-L,
Criterion AEN 61000-4-5Surge
2 kV signal
2 kV power
Criterion BEN 61000-4-4Fast transients (burst)
2 kV L&N-E power
10 V/m
Criterion BEN 61000-4-3Electromagnetic RF fields
8 kV air discharge
4 kV contact discharge
Criterion AEN 61000-4-2Electrostatic discharge
Immunity to Industrial Locations:

E
3391-717-767-6511
The meter has switches, which must be checked and/or changed prior to
applying power. To access the switch, remove the meter base from the case by
firmly squeezing and pulling back on the side rear finger tabs. This should lower
the latch below the case slot (which is located just in front of the finger tabs). It
is recommended to release the latch on one side, then start the other side latch.
Power Selection Switch
Caution: Insure the AC power selection switch is set for the
proper voltage before powering the meter. The meter is shipped
from the factory in the 230 VAC position.
Set-Up DIP Switches
A DIP switch is located inside the meter. It is used for the selection of decimal
points, backlight annunciator, and scaling. Selecting the “ON” position enables
the function.
SET-UP
DIP
SWITCHES
POWER SELECTION
SWITCH
SCALING
POT
230
115
Main
Circuit
Board
REAR TERMINALS
FRONT DISPLAY
2.0 SETTING THE SWITCHES
1.0 INSTALLING THE METER
Installation
The PAX meets NEMA 4X/IP65 requirements when properly installed. The
unit is intended to be mounted into an enclosed panel. Prepare the panel cutout
to the dimensions shown. Remove the panel latch from the unit. Slide the panel
gasket over the rear of the unit to the back of
the bezel. The unit should be installed
fully assembled. Insert the unit into
the panel cutout.
While holding the unit in place, push the panel latch over the rear of the unit
so that the tabs of the panel latch engage in the slots on the case. The panel latch
should be engaged in the farthest forward slot possible. To achieve a proper seal,
tighten the latch screws evenly until the unit is snug in the panel (Torque to
approximately 7 in-lbs [79N-cm]). Do not over-tighten the screws.
Installation Environment
The unit should be installed in a location that does not exceed the maximum
operating temperature and provides good air circulation. Placing the unit near
devices that generate excessive heat should be avoided.
The bezel should be cleaned only with a soft cloth and neutral soap product.
Do NOT use solvents. Continuous exposure to direct sunlight may accelerate the
aging process of the bezel.
PANEL CUT-OUT
Enables the Scaling Pot5
Backlight Annunciator for Units Label4
Decimal Point 3 (0.000)3
Decimal Point 2 (00.00)2
Decimal Point 1 (000.0)1
FUNCTIONSWITCH

E
340 www.redlion.net
WIRING OVERVIEW
Electrical connections are made via screw-clamp terminals located on the
back of the meter. All conductors should conform to the meter’s voltage and
current ratings. All cabling should conform to appropriate standards of good
installation, local codes and regulations. It is recommended that power supplied
to the meter (AC) be protected by a fuse or circuit breaker.
When wiring the meter, compare the numbers embossed on the back of the
meter case against those shown in wiring drawings for proper wire position. Strip
the wire, leaving approximately 0.3" (7.5 mm) bare lead exposed (stranded wires
should be tinned with solder.) Insert the lead under the correct screw-clamp
terminal and tighten until the wire is secure. (Pull wire to verify tightness.)
EMC INSTALLATION GUIDELINES
Although this meter is designed with a high degree of immunity to Electro-
Magnetic Interference (EMI), proper installation and wiring methods must be
followed to ensure compatibility in each application. The type of the electrical
noise, its source or the method of coupling into the unit may be different for
various installations. Listed below are some EMC guidelines for successful
installation in an industrial environment.
1. The meter should be mounted in a metal enclosure, which is properly
connected to protective earth.
2. Never run Signal or Control cables in the same conduit or raceway with AC
power lines, conductors feeding motors, solenoids, SCR controls, and
heaters, etc. The cables should be run in metal conduit that is properly
grounded. This is especially useful in applications where cable runs are long
and portable two-way radios are used in close proximity or if the installation
is near a commercial radio transmitter.
3. Signal or Control cables within an enclosure should be routed as far away as
possible from contactors, control relays, transformers, and other noisy
components.
4. In extremely high EMI environments, the use of external EMI suppression
devices, such as ferrite suppression cores, is effective. Install them on Signal
and Control cables as close to the unit as possible. Loop the cable through the
core several times or use multiple cores on each cable for additional protection.
Install line filters on the power input cable to the unit to suppress power line
interference. Install them near the power entry point of the enclosure. The
following EMI suppression devices (or equivalent) are recommended:
Ferrite Suppression Cores for signal and control cables:
Fair-Rite # 0443167251 (RLC #FCOR0000)
TDK # ZCAT3035-1330A
Steward #28B2029-0A0
Line Filters for input power cables:
Schaffner # FN610-1/07 (RLC #LFIL0000)
Schaffner # FN670-1.8/07
Corcom #1VR3
Note: Reference manufacturer’s instructions when installing a line filter.
5. Long cable runs are more susceptible to EMI pickup than short cable runs.
Therefore, keep cable runs as short as possible.
6. Switching of inductive loads produces high EMI. Use of snubbers across
inductive loads suppresses EMI.
Snubber: RLC#SNUB0000.
3.0 WIRING THE METER
3.1 POWER WIRING
AC Power
Terminal 1: VAC
Terminal 2: VAC
3.2 INPUT SIGNAL WIRING
Current Signal (self powered)
Terminal 4: + Amps AC
Terminal 3: - Amps AC
4.0 SCALING THE METER
FACTORY SCALING
The meter is calibrated from the factory for 5 Amps AC current input to show
1999. This scaling will be used when the Scale Switch is in the “OFF” position.
SCALING READOUT
Place the Scale Switch in the “ON” position. This enables the Scale
Potentiometer which is accessible from the back of the meter. (Enabling the
Scale Potentiometer does NOT affect the calibration of the meter.) Place the
Decimal Point Switches to the proper location. Apply the meter power and the
current signal. Adjust the Scale Potentiometer to the desired value.
This scaling only effects the span. There is no offset scaling. This means that
only zero current can display a value of zero.
At 5 Amps AC current input, the display can be scaled from 1999 down to
200 by using the scaling potentiometer. For display values below 200, turn on
the appropriate Decimal Point Switch and then adjust the potentiometer to
achieve the desired display value. Example: A customer wants to display 50
Amps because he is using a 50:5 CT. In this case, he must turn DIP switch 1 on
for a decimal point and DIP switch 5 on for scaling. Then apply the 5 Amp
signal and turn the scaling pot until 50.0 is shown on the display.

E
3411-717-767-6511
CAUTION: It is recommended that the current transformer be
internally protected or that a voltage clamping circuit be provided,
preventing dangerous high voltage across the CT secondary
windings in case of accidental opening of the secondary output
leads when the primary is energized.
In order to prevent risk of electric shock ensure CT is installed
according to local NEC regulations for installation of current
instrument transformers.
PROBLEM REMEDIES
NO DISPLAY CHECK: Power switch and line voltage
INCORRECT DISPLAY
OVER-RANGE INDICATION VERIFY: Input signal
CHECK: Scaling adjustment pot DIP switch position
ADJUST: Scaling pot
VERIFY: Input Signal
For further assistance, contact technical support at the appropriate company numbers listed.
MOTOR CURRENT MEASUREMENT USING A
CURRENT TRANSFORMER
The PAXLIT 5 Amp AC Current Meter is configured by simply connecting
the “COMM.” (Terminal 3) and the “5AMP” (Terminal 4) to the external
current transformer. The current carrying wire to be sensed is passed through the
center of the current transformer. The resolution of the display, in this case, is
0.1 Amp, therefore, “Switch #1” is selected.
The meter is now ready to be scaled. The installer has access to a calibrated
portable digital current meter capable of measuring the motor current. Scaling
will be accomplished by adjusting the scaling pot on the PAXLIT meter to agree
with the portable digital current meter. The operator turns on the AC motor and
lifts a large weight to load the motor. The installer then simply adjusts the
scaling adjustment, located at the rear of the unit, until the display is equal to
the value indicated on the portable current meter. The meter will now indicate
the load current of the motor precisely.
5.0 APPLICATION
6.0 TROUBLESHOOTING
7.0 CALIBRATION
The meter has been fully calibrated at the factory. Scaling to convert the input
signal to a desired display value is performed by enabling the scale pot DIP
switch. If the meter appears to be indicating incorrectly or inaccurately, refer to
Troubleshooting before attempting to calibrate the meter.
When recalibration is required (generally every two years), it should only be
performed by qualified technicians using appropriate equipment.
Input Calibration
Before starting, verfiy that the precision signal source is connected and ready.
Allow a 30 minute warm-up period before calibrating the meter.
Then perform the following procedure:
1. Set the DIP switch off to disable the scaling pot.
2. Apply half scale input signal.
3. Adjust calibration potentiometer as necessary for the display to read 1000
(ignore decimal point)
4. Apply zero signal and ensure display reads zero.
5. Apply full scale signal and ensure display reads 1999.
WARNING: Calibration of this meter requires a signal source
with an accuracy of 0.05% or better and an external meter with
an accuracy of 0.005% or better.

E
342 www.redlion.net
O3-DIGIT, 0.56" (14.2 mm) HIGH LED DISPLAY
OAUTO ZEROING CIRCUIT
ONEMA 4X/IP65 SEALED FRONT BEZEL
OOPTIONAL CUSTOM UNITS OVERLAY W/BACKLIGHT
OUP TO 600 VAC MAX
GENERAL DESCRIPTION
The Model PAXLHV is designed for AC voltage monitoring. The half-wave
rectified input signal is calibrated to indicate the RMS value of a pure
sinusoidal wave-form. The front bezel meets NEMA 4X/IP65 requirements
when properly installed.
SAFETY SUMMARY
All safety related regulations, local codes and instructions that appear in the
literature or on equipment must be observed to ensure personal safety and to
prevent damage to either the instrument or equipment connected to it. If
equipment is used in a manner not specified by the manufacturer, the protection
provided by the equipment may be impaired.
DEFINITION OF TERMS
INSTALLATION CATEGORY (overvoltage category) I:
Signal level, special equipment or parts of equipment, telecommunication,
electronic, etc. with smaller transient overvoltages than Installation
Category (overvoltage category) II.
INSTALLATION CATEGORY (overvoltage category) II:
Local level, appliances, portable equipment, etc. with smaller transient
overvoltages than Installation Category (overvoltage category) III.
MODEL PAXLHV - PAX LITE AC VOLTAGE MONITOR
DIMENSIONS In inches (mm) Note: Recommended minimum clearance (behind the panel) for mounting clip installation is
2.1" (53.4) H x 5.0" (127) W.
CAUTION: Read complete
instructions prior to installation
and operation of the unit.
CAUTION: Risk of electric shock.
C
C
US LISTED
US LISTED
UL
R
IND. CONT. EQ.
51EB

E
3431-717-767-6511
TABLE OFCONTENTS
ORDERING INFORMATION
PAXL HV 0
0
HV - AC Voltage Input
Meter Part Numbers
Accessories Part Number
PAXLBK30Units Label Kit Accessory PAXLBKAccessories
TYPE PART NUMBERSDESCRIPTIONMODEL NO.
Ordering Information . . . . . . . . . . . . . . . . . . . 2
General Meter Specifications. . . . . . . . . . . . . 3
Accessories . . . . . . . . . . . . . . . . . . . . . . . . . 3
Installing the Meter . . . . . . . . . . . . . . . . . . . . 4
Setting the Switches . . . . . . . . . . . . . . . . . . . 4
Wiring the Meter . . . . . . . . . . . . . . . . . . . . . . 5

E
344 www.redlion.net
1. DISPLAY: 3-digit, 0.56" (14.2 mm) high character, 7-segment Red LED
2. POWER: 115 or 230 VAC, switch selectable. Allowable power line variation
±10%, 50/60 Hz, 6 VA. Installation Category II, Pollution Degree 2.
Isolation: 2300 Vrms for 1 min. to input
Working Voltage: 300 V max., CAT II
3. ACCURACY: At 23°C, 85% R.H.; ±(0.1% of Reading + 2 digits)
4. INPUT IMPEDANCE: 1 MΩ
5. INPUT RANGE: 0 to 600 VAC max. @ 45 to 500 Hz. Installation Category I
6. RESOLUTION: 1 VAC
7. ENVIRONMENTAL CONDITIONS:
Operating Temperature Range: 0° to 60°C
Storage Temperature Range: -40° to 80°C
Operating and Storage Humidity: 85% max. relative humidity (non-
condensing)
Temperature Coefficient: ±150 PPM/°C
Altitude: Up to 2000 meters
8. READING RATE: 400 msec., nominal
9. RESPONSE TIME: 1 sec. nominal for a step change input.
10. CERTIFICATIONS AND COMPLIANCES:
SAFETY
UL Recognized Component, File #E179259, UL3101-1, CSA C22.2 No.
1010-1
Recognized to U.S. and Canadian requirements under the Component
Recognition Program of Underwriters Laboratories Inc.
UL Listed, File #E137808, UL508, CSA C22.2 No. 14-M95
LISTED by Und. Lab. Inc. to U.S. and Canadian safety standards
Type 4X Enclosure rating (Face only), UL50
IECEE CB Scheme Test Certificate #UL/7470/UL
CB Scheme Test Report #03ME09282-08292003
Issued by Underwriters Laboratories, Inc.
IEC 1010-1, EN 61010-1: Safety requirements for electrical equipment
for measurement, control, and laboratory use, Part 1.
IP65 Enclosure rating (Face only), IEC 529
ELECTROMAGNETIC COMPATIBILITY:
Emissions and Immunity to EN 61326: Electrical Equipment for
Measurement, Control and Laboratory use.
Notes:
1. Criterion A: Normal operation within specified limits.
2. Criterion B: Temporary loss of performance from which the unit self-
recovers.
11. CONNECTIONS: High compression cage-clamp terminal block
Wire Strip Length: 0.3" (7.5 mm)
Wire Gage: 30-14 AWG copper wire
Torque: 4.5 inch-lbs (0.51 N-m) max.
12. CONSTRUCTION: This unit is rated for NEMA 4X/IP65 use. Installation
Category II, Pollution Degree 2. One piece bezel/case. Flame resistant. Panel
Gasket and mounting clip included.
13. WEIGHT: 0.65 lbs. (0.24 Kg)
GENERAL METER SPECIFICATIONS
ACCESSORIES
UNITS LABEL KIT (PAXLBK)
Each meter has a units indicator with backlighting that can be customized
using the Units Label Kit. The backlight is controlled by a DIP switch.
Class BEN 55011Emissions
Emissions:
0.5 cycle; 40 % variation
Criterion AEN 61000-4-11Voltage dip/interruptions
3 V/rms
Criterion AEN 61000-4-6RF conducted interference
1 kV L-L,
Criterion AEN 61000-4-5Surge
2 kV signal
2 kV power
Criterion AEN 61000-4-4Fast transients (burst)
2 kV L&N-E power
10 V/m
Criterion B EN 61000-4-3Electromagnetic RF fields
8 kV air discharge
4 kV contact discharge
Criterion AEN 61000-4-2Electrostatic discharge
Immunity to Industrial Locations:

E
3451-717-767-6511
The meter has a switch, which must be checked and/or changed prior to
applying power. To access the switch, remove the meter base from the case by
firmly squeezing and pulling back on the side rear finger tabs. This should lower
the latch below the case slot (which is located just in front of the finger tabs). It
is recommended to release the latch on one side, then start the other side latch.
Power Selection Switch
Caution: Insure the AC power selection switch is set for the
proper voltage before powering-up the meter. The meter is shipped
from the factory in the 230 VAC position.
Set-Up DIP Switches
A DIP switch is located inside the meter. It is used for the selection of decimal
points and backlight annunciator. Selecting the “ON” position enables the
function.
2.0 SETTING THE SWITCHES
1.0 INSTALLING THE METER
Installation
The PAX meets NEMA 4X/IP65 requirements when properly installed. The
unit is intended to be mounted into an enclosed panel. Prepare the panel cutout
to the dimensions shown. Remove the panel latch from the unit. Slide the panel
gasket over the rear of the unit to the
back of the bezel. The unit should be
installed fully assembled. Insert the
unit into the panel cutout.
While holding the unit in place, push the panel latch over the rear of the unit
so that the tabs of the panel latch engage in the slots on the case. The panel latch
should be engaged in the farthest forward slot possible. To achieve a proper seal,
tighten the latch screws evenly until the unit is snug in the panel (Torque to
approximately 7 in-lbs [79N-cm]). Do not over-tighten the screws.
Installation Environment
The unit should be installed in a location that does not exceed the maximum
operating temperature and provides good air circulation. Placing the unit near
devices that generate excessive heat should be avoided.
The bezel should be cleaned only with a soft cloth and neutral soap product.
Do NOT use solvents. Continuous exposure to direct sunlight may accelerate the
aging process of the bezel.
PANEL CUT-OUT
Backlight Annunciator for Units Label4
Decimal Point 3 (0.000)3
Decimal Point 2 (00.00)2
Decimal Point 1 (000.0)1
FUNCTIONSWITCH
Main
Circuit
Board
SET-UP
DIP
SWITCHES
POWER SELECTION
SWITCH
230
115
REAR TERMINALS
FRONT DISPLAY

E
346 www.redlion.net
WIRING OVERVIEW
All conductors should meet voltage and current ratings for each terminal. Also,
cabling should conform to appropriate standards of good installation, local codes
and regulations. It is recommended that power supplied to the unit be protected by
a fuse or circuit breaker. As depicted in the drawing of the Model PAXLHV, all
connections are made on the terminal block located at the rear of the unit.
3.0 WIRING THE METER
The PAX Lite AC Voltage Monitor incorporates a built-in precision
voltage divider that provides direct measurement from 0 to 600 VAC.
BLOCK DIAGRAM
3.1 POWER WIRING
AC Power
Terminal 1: VAC
Terminal 2: VAC
Primary AC power is connected to terminal 1 and 2 (Marked AC Power,
located on the left-hand side of the terminal block). For best results, the AC
power should be relatively “Clean” and within the specified ±10% variation
limit. Drawing power from heavily loaded circuits or from circuits that also
power loads that cycle on and off, should be avoided.
Input connections are made on terminal 5 and 8. When powering the
PAXLHV with the same voltage that is being measured, terminal 5 (COMM.)
should be connected to neutral for the most stable reading on the display. If an
unstable display results from measuring a voltage that is isolated from the supply
voltage, reversing the supply voltage connections may correct this condition.
EMC INSTALLATION GUIDELINES
Although this meter is designed with a high degree of immunity to
Electromagnetic Interference (EMI), proper installation and wiring methods
must be followed to ensure compatibility in each application. The type of the
electrical noise, source or coupling method into the meter may be different for
various installations. Cable length, routing and shield termination are very
important and can mean the difference between a successful or a troublesome
installation. Listed below are some EMC guidelines for successful installation
in an industrial environment.
1. The meter should be mounted in a metal enclosure, that is properly connected
to protective earth.
2. Use shielded (screened) cables for all Signal and Control inputs. The shield
(screen) pigtail connection should be made as short as possible. The
connection point for the shield depends somewhat upon the application.
Listed below are the recommended methods of connecting the shield, in order
of their effectiveness.
a. Connect the shield only at the panel where the meter is mounted to earth
ground (protective earth).
b. Connect the shield to earth ground at both ends of the cable, usually when
the noise source frequency is above 1 MHz.
c. Connect the shield to common of the meter and leave the other end of the
shield unconnected and insulated from earth ground.
3. Never run Signal or Control cables in the same conduit or raceway with AC
power lines, conductors feeding motors, solenoids, SCR controls, and
heaters, etc. The cables should be run in metal conduit that is properly
grounded. This is especially useful in applications where cable runs are long
and portable two-way radios are used in close proximity or if the installation
is near a commercial radio transmitter.
4. Signal or Control cables within an enclosure should be routed as far as possible
from contactors, control relays, transformers, and other noisy components.
5. In extremely high EMI environments, the use of external EMI suppression
devices, such as ferrite suppression cores, is effective. Install them on Signal
and Control cables as close to the unit as possible. Loop the cable through the
core several times or use multiple cores on each cable for additional protection.
Install line filters on the power input cable to the unit to suppress power line
interference. Install them near the power entry point of the enclosure. The
following EMI suppression devices (or equivalent) are recommended:
Ferrite Suppression Cores for signal and control cables:
Fair-Rite # 0443167251 (RLC #FCOR0000)
TDK # ZCAT3035-1330A
Steward #28B2029-0A0
Line Filters for input power cables:
Schaffner # FN610-1/07 (RLC #LFIL0000)
Schaffner # FN670-1.8/07
Corcom #1VB3
Corcom #1VR3
Note: Reference manufacturer's instructions when installing a line filter.
6. Long cable runs are more susceptible to EMI pickup than short cable runs.
Therefore, keep cable runs as short as possible.
3.2 INPUT SIGNAL WIRING
Voltage Input
Terminal 5: Common
Terminal 8: 600 VAC

E
3471-717-767-6511
GENERAL DESCRIPTION
The PAXLA is a versatile meter available as a DC volt, current, or process
meter with scaling and dual Form C relay outputs. The meter is programmed
through the front panel buttons and the use of jumpers. The RST Key will also
function as a front panel display reset.
Once the front panel programming is complete, the buttons can be disabled
by a user input setting. The meter has been specifically designed for harsh
industrial environments. With a NEMA 4X/IP65 sealed bezel and extensive
testing to meet CE requirements, the meter provides a tough yet reliable
application solution.
SAFETY SUMMARY
All safety regulations, local codes and instructions that appear in this and
corresponding literature, or on equipment, must be observed to ensure personal
safety and to prevent damage to either the instrument or equipment connected to
it. If equipment is used in a manner not specified by the manufacturer, the
protection provided by the equipment may be impaired.
SPECIFICATIONS
1. DISPLAY: 5 digit, 0.56" (14.2 mm) intensity adjustable Red LED (-19999 to
99999)
2. POWER REQUIREMENTS:
AC POWER: 50 to 250 VAC 50/60 Hz, 12 VA
Isolation: 2300 Vrms for 1 min. to all inputs and outputs
DC POWER: 21.6 to 250 VDC, 6 W
DC Out: +24 VDC @ 100 mA if input voltage is greater than 50 VAC/VDC
+24 VDC @ 50 mA if input voltage is less than 50 VDC
3. INPUT RANGES: Jumper Selectable
D.C. Voltages: 200 mV, 2 V, 20 V, 200 V, 10 V
D.C. Currents: 200 μA, 2 mA, 20 mA, 200 mA
D.C. Process: 4 to 20 mA, 1 to 5 VDC, 0/1 to 10 VDC
4. OVERRANGE/UNDERRANGE INDICATION:
Input Overrange Indication: “OLOL”.
Input Underrange Indication: “ULUL”.
Display Overrange/Underrange Indication: “.....”/“-.....”
5. A/D CONVERTER: 16 bit resolution
6. UPDATE RATES:
A/D conversion rate: 20 readings/sec.
Display update: 500 msec min.
z5 DIGIT, 0.56" HIGH RED LED DISPLAY
zPROGRAMMABLE SCALING AND DECIMAL POINTS
zPROGRAMMABLE USER INPUT
zDUAL 5 AMP FORM C RELAY
zUNIVERSALLY POWERED
zNEMA 4X/IP65 SEALED FRONT BEZEL
zOPTIONAL CUSTOM UNIT OVERLAY W/ BACKLIGHT
zMINIMUM AND MAXIMUM DISPLAY CAPTURE
MODEL PAXLA - PAX LITE DC VOLT/CURRENT/PROCESS METER
DIMENSIONS In inches (mm)
CAUTION: Risk of Danger.
Read complete instructions prior to
installation and operation of the unit.
CAUTION: Risk of electric shock.
INPUT
RANGE
INPUT
IMPEDANCE
MAX
INPUT
SIGNAL
RESOLUTION TEMP.
COEFFICIENT
200 mV 0.1% of span 1.033 MΩ75 VDC 10 μV70 ppm /°C
2 V 0.1% of span 1.033 MΩ75 VDC 0.1 mV 70 ppm /°C
20 V 0.1% of span 1.033 MΩ250 VDC 1 mV 70 ppm /°C
10 V
200 V
0.1% of span
0.1% of span
538 KΩ
1.033 MΩ
75 V
250 VDC
1 mV
10 mV
70 ppm /°C
70 ppm /°C
ACCURACY @
23 °°C LESS
THAN 85% RH
INPUT
RANGE
INPUT
IMPEDANCE
MAX
INPUT
SIGNAL
RESOLUTION TEMP.
COEFFICIENT
200 μΑ 0.1% of span 1.111 KΩ15 mA 10 nA 70 ppm /°C
2 mA 0.1% of span 111 Ω50 mA 0.1 μA70 ppm /°C
20 mA 0.1% of span 11 Ω150 mA 1 μA70 ppm /°C
200 mA 0.1% of span 1 Ω500 mA 10 μA70 ppm /°C
ACCURACY @
23 °°C LESS
THAN 85% RH
ORDERING INFORMATION
MODEL NO. DESCRIPTION PART NUMBER
PAXLBK10
PAXLA000
PAXLBK
PAXLA
Unit Label Kit Accessory
Volt/Current/Process Meter with dual Relay Output
INPUT RANGE SELECT RANGE
4 - 20 mA Use the 20 mA range
1 - 5 VDC Use the 10V range
1 - 10 VDC Use the 10V range

E
348 www.redlion.net
7. USER INPUT:
User Input: Software selectable pull-up (24.7 KΩ) or pull-down resistor
(20 KΩ) that determines active high or active low input logic.
Trigger levels: VIL = 1.0 V max; VIH = 2.4 V min; VMAX = 28 VDC
Response Time: 5 msec typ.; 100 msec debounce (activation and release)
8. MEMORY: Nonvolatile E2PROM retains all programming parameters when
power is removed.
9. OUTPUT:
Type: Single FORM-C relay
Isolation To Sensor & User Input Commons: 1400 Vrms for 1 min.
Working Voltage: 150 Vrms
Contact Rating: 5 amps @ 120/240 VAC or 28 VDC (resistive load), 1/8
H.P. @ 120 VAC (inductive load)
Life Expectancy: 100,000 minimum operations
Response Time:
Turn On Time: 4 msec max.
Turn Off Time: 4 msec max.
10. ENVIRONMENTAL CONDITIONS:
Operating temperature: 0 to 50 °C
Storage temperature: -40 to 70 °C
Operating and storage humidity: 0 to 85% max. RH (non-condensing)
Altitude: Up to 2,000 meters
11. CONNECTIONS: High compression cage-clamp terminal block
Wire Strip Length: 0.3" (7.5 mm)
Wire Gage: 30-14 AWG copper wire
Torque: 4.5 inch-lbs (0.51 N-m) max.
12. CONSTRUCTION: This unit is rated for NEMA 4X/IP65 outdoor use. IP20
Touch safe. Installation Category II, Pollution Degree 2. One piece
bezel/case. Flame resistant. Synthetic rubber keypad. Panel gasket and
mounting clip included.
13. CERTIFICATIONS AND COMPLIANCES:
SAFETY
IEC 61010-1, EN 61010-1: Safety requirements for electrical equipment for
measurement, control, and laboratory use, Part 1.
IP65 Enclosure rating (Face only), IEC 529
Type 4X Enclosure rating (Face only), UL50
ELECTROMAGNETIC COMPATIBILITY
Emissions and Immunity to EN 61326: Electrical Equipment for
Measurement, Control and Laboratory use.
Notes:
1. Criterion A: Normal operation within specified limits.
2. Criterion B: Temporary loss of performance from which the unit self-
recovers.
14. WEIGHT: 10.4 oz. (295 g)
Class AEN 55011Emissions
0.5 cycle
Criterion AEN 61000-4-11
Emissions:
Voltage dip/interruptions
3 V/rms
Criterion AEN 61000-4-6RF conducted interference
1 kV L-L,
Criterion AEN 61000-4-5Surge
1 kV signal
2 kV power
Criterion BEN 61000-4-4Fast transients (burst)
2 kV L&N-E power
10 V/m
Criterion AEN 61000-4-3Electromagnetic RF fields
8 kV air discharge
4 kV contact discharge
Criterion AEN 61000-4-2Electrostatic discharge
Immunity to Industrial Locations:
1.0 INSTALLING THE METER
Installation
The PAX meets NEMA 4X/IP65 requirements when properly installed. The
unit is intended to be mounted into an enclosed panel. Prepare the panel cutout
to the dimensions shown. Remove the panel latch from the unit. Slide the panel
gasket over the rear of the unit to the back of the bezel. The unit should be
installed fully assembled. Insert the unit into the panel cutout.
While holding the unit in place, push the panel latch over the rear of the unit
so that the tabs of the panel latch engage in the slots on the case. The panel latch
should be engaged in the farthest forward slot possible. To achieve a proper seal,
tighten the latch screws evenly until the unit is snug in the panel (Torque to
approximately 7 in-lbs [79N-cm]). Do not over-tighten the screws.
Installation Environment
The unit should be installed in a location that does not exceed the maximum
operating temperature and provides good air circulation. Placing the unit near
devices that generate excessive heat should be avoided.
The bezel should be cleaned only with a soft cloth and neutral soap product.
Do NOT use solvents. Continuous exposure to direct sunlight may accelerate the
aging process of the bezel.
Do not use tools of any kind (screwdrivers, pens, pencils, etc.) to operate the
keypad of the unit.
PANEL CUT-OUT

E
3491-717-767-6511
3.0 WIRING THE METER
EMC INSTALLATION GUIDELINES
Although this meter is designed with a high degree of immunity to Electro-
Magnetic Interference (EMI), proper installation and wiring methods must be
followed to ensure compatibility in each application. The type of the electrical
noise, source or coupling method into the meter may be different for various
installations. The meter becomes more immune to EMI with fewer I/O
connections. Cable length, routing, and shield termination are very important
and can mean the difference between a successful or troublesome installation.
Listed below are some EMC guidelines for successful installation in an
industrial environment.
1. The meter should be properly connected to protective earth.
2. Use shielded (screened) cables for all Signal and Control inputs. The shield
(screen) pigtail connection should be made as short as possible. The
connection point for the shield depends somewhat upon the application.
Listed below are the recommended methods of connecting the shield, in order
of their effectiveness.
a. Connect the shield only at the panel where the unit is mounted to earth
ground (protective earth).
b. Connect the shield to earth ground at both ends of the cable, usually when
the noise source frequency is above 1 MHz.
c. Connect the shield to common of the meter and leave the other end of the
shield unconnected and insulated from earth ground.
3. Never run Signal or Control cables in the same conduit or raceway with AC
power lines, conductors feeding motors, solenoids, SCR controls, and
heaters, etc. The cables should be ran in metal conduit that is properly
grounded. This is especially useful in applications where cable runs are long
and portable two-way radios are used in close proximity or if the installation
is near a commercial radio transmitter.
4. Signal or Control cables within an enclosure should be routed as far as possible
from contactors, control relays, transformers, and other noisy components.
5. In extremely high EMI environments, the use of external EMI suppression
devices, such as ferrite suppression cores, is effective. Install them on Signal
and Control cables as close to the unit as possible. Loop the cable through the
core several times or use multiple cores on each cable for additional protection.
Install line filters on the power input cable to the unit to suppress power line
interference. Install them near the power entry point of the enclosure. The
following EMI suppression devices (or equivalent) are recommended:
Ferrite Suppression Cores for signal and control cables:
Fair-Rite # 0443167251 (RLC# FCOR0000)
TDK # ZCAT3035-1330A
Steward # 28B2029-0A0
Line Filters for input power cables:
Schaffner # FN610-1/07 (RLC# LFIL0000)
Schaffner # FN670-1.8/07
Corcom # 1 VR3
Note: Reference manufacturer's instructions when installing a line filter.
6. Long cable runs are more susceptible to EMI pickup than short cable runs.
Therefore, keep cable runs as short as possible.
7. Switching of inductive loads produces high EMI. Use of snubbers across
inductive loads suppresses EMI.
Snubber: RLC# SNUB0000.
INPUT RANGE JUMPER
This jumper is used to select the proper input range. The input range selected
in programming must match the jumper setting. Select a range that is high
enough to accommodate the maximum signal input to avoid overloads.
To access the jumpers, remove the meter base from the case by firmly
squeezing and pulling back on the side rear finger tabs. This should lower the
latch below the case slot (which is located just in front of the finger tabs). It is
recommended to release the latch on one side, then start on the other side latch.
Warning: Exposed line voltage exists on the circuit boards.
Remove all power to the meter and load circuits before accessing
inside of the meter.
2.0 SETTING THE JUMPERS
WIRING OVERVIEW
Electrical connections are made via screw-clamp terminals located on the
back of the meter. All conductors should conform to the meter’s voltage and
current ratings. All cabling should conform to appropriate standards of good
installation, local codes and regulations. It is recommended that the power
supplied to the meter (DC or AC) be protected by a fuse or circuit breaker.
When wiring the meter, compare the numbers embossed on the back of the
meter case against those shown in wiring drawings for proper wire position.
Strip the wire, leaving approximately 0.3" (7.5 mm) bare lead exposed (stranded
wires should be tinned with solder.) Insert the lead under the correct screw-
clamp terminal and tighten until the wire is secure. (Pull wire to verify tightness.)

E
350 www.redlion.net
3.2 USER INPUT WIRING
CAUTION: Analog common is NOT isolated from user input common. In order to preserve the safety of the meter
application, the Analog and DC power common must be suitably isolated from hazardous live earth referenced voltage; or
input common must be at protective earth ground potential. If not, hazardous voltage may be present at the User Input and
Input Common terminals. Appropriate considerations must then be given to the potential of the input common with respect
to earth ground. Always connect the analog signal common to terminal 7.
Terminal 8: User Input
Terminal 9: User Comm
3.3 SETPOINT (OUTPUT) WIRING
Terminal 10: NC 1
Terminal 11: NO 1
Terminal 12: Relay 1 Common
Terminal 13: NC 2
Terminal 14: NO 2
Terminal 15: Relay 2 Common
Sinking Logic Sourcing Logic
Current Signal
(self powered)
Terminal 6: +ADC
Terminal 7: -ADC
Voltage Signal
(self powered)
Terminal 5: +VDC
Terminal 7: -VDC
Current Signal (2 wire
requiring excitation)
Terminal 3: +EXC
Terminal 6: +ADC
3.4 INPUT SIGNAL WIRING
Current Signal (3 wire
requiring excitation)
Terminal 6: +ADC (signal)
Terminal 7: -ADC (common)
Terminal 3: +EXC
Voltage Signal (3 wire
requiring excitation)
Terminal 5: +VDC (signal)
Terminal 7: -VDC (common)
Terminal 3: +EXC
3.1 POWER WIRING
DC Out Power
Terminal 3: + 24 VDC OUT
Terminal 4: Common
Power
Terminal 1: VAC/DC +
Terminal 2: VAC/DC -

E
3511-717-767-6511
4.0 REVIEWING THE FRONT BUTTONS AND DISPLAY
BUTTON DISPLAY MODE OPERATION PROGRAMMING MODE OPERATION
PAR Access Programming Mode Store selected parameter and index to next parameter
RST
SEL
Resets display
Index display through selected displays
OPERATING MODE DISPLAY DESIGNATORS
MAX - Maximum display capture value
MIN - Minimum display capture value
“SP1” - Below the display indicates setpoint 1 output activated.
“SP2” - Below the display indicates setpoint 2 output activated.
Pressing the SEL button toggles the meter through the selected displays. If display scroll is enabled, the display will toggle automatically every four seconds between
the enabled display values.
Advance through selection list/select digit position in
parameter value
Increment selected digit of parameter value
PROGRAMMING MODE ENTRY (PAR BUTTON)
It is recommended all programming changes be made off line, or before
installation. The meter normally operates in the Display Mode. No parameters
can be programmed in this mode. The Programming Mode is entered by
pressing the PAR button. If it is not accessible, then it is locked by either a
security code or a hardware lock.
MODULE ENTRY (SEL & PAR BUTTONS)
The Programming Menu is organized into four modules. These modules group
together parameters that are related in function. The display will alternate between
Pro and the present module. The SEL button is used to select the desired module.
The displayed module is entered by pressing the PAR button.
MODULE MENU (PAR BUTTON)
Each module has a separate module menu (which is shown at the start of each
module discussion). The PAR button is pressed to advance to a particular
parameter to be changed, without changing the programming of preceding
parameters. After completing a module, the display will return to Pro NO.
Programming may continue by accessing additional modules.
SELECTION / VALUE ENTRY
For each parameter, the display alternates between the present parameter and
the selections/value for that parameter. The SEL and RST buttons are used to move
through the selections/values for that parameter. Pressing the PAR button, stores
and activates the displayed selection/value. This also advances the meter to the
next parameter.
For numeric values, the value is displayed with one digit flashing (initially the
right most digit). Pressing the RST button increments the digit by one or the user
can hold the RST button and the digit will automatically scroll. The SEL button
will select the next digit to the left. Pressing the PAR button will enter the value
and move to the next parameter.
PROGRAMMING MODE EXIT (PAR BUTTON)
The Programming Mode is exited by pressing the PAR button with Pro NO
displayed. This will commit any stored parameter changes to memory and return
the meter to the Display Mode. (If power loss occurs before returning to the
Display Mode, verify recent parameter changes.)
PROGRAMMING TIPS
It is recommended to start with Module 1 and proceed through each module in
sequence. When programming is complete, it is recommended to record the
parameter programming and lock out parameter programming with the user input
or programming security code.
FACTORY SETTINGS
Factory Settings may be completely restored in Module 2. This is useful when
encountering programming problems.
ALTERNATING SELECTION DISPLAY
In the explanation of the modules, the following dual display with arrows will
appear. This is used to illustrate the display alternating between the parameter
on top and the parameter’s Factory Setting on the bottom. In most cases,
selections and values for the parameter will be listed on the right.
Indicates Program Mode Alternating Display
Factory Settings are shown.
Parameter
Selection/Value
ª
«
N0
USrIN
5.0 PROGRAMMING THE METER
OVERVIEW
PROGRAMMING MENU

E
352 www.redlion.net
ª
«
100.00
dSP 2
DISPLAY VALUE FOR SCALING POINT 2
-19999 to 99999
Enter the second Display Value by using the front panel buttons. This is the
same for KEY and APLY scaling styles. The decimal point follows the dECPt
selection.
General Notes on Scaling
1. When using the Apply (APLY) scaling style, input values for scaling points
must be confined to the range limits shown.
2. The same Input Value should not correspond to more than one Display Value.
(Example: 20 mA can not equal 0 and 20.)
3. For input levels beyond the programmed Input Values, the meter extends the
Display Value by calculating the slope from the two coordinate pairs (INP1 /
dSP1 & INP2 / dSP2).
ª
«
KEy
StYLE
SCALING STYLE
If Input Values and corresponding Display Values are known, the Key-in
(KEY) scaling style can be used. This allows scaling without the presence or
changing of the input signal. If Input Values have to be derived from the actual
input signal source or simulator, the Apply (APLY) scaling style must be used.
KEy APLY
ª
«
0.00
INP 1
INPUT VALUE FOR SCALING POINT 1
For Key-in (KEY) style, enter the first Input Value using the front panel buttons.
(The Input Range selection sets the decimal location for the Input Value).
For Apply (APLY) style, the meter shows the previously stored Input Value. To
retain this value, press the SEL button to advance to the next parameter. To
change the Input Value, press the RST button and apply the input signal to the
meter. Adjust the signal source externally until the desired Input Value appears.
Press the SEL button to enter the value being displayed.
0to 29999
ª
«
0.00
dSP 1
DISPLAY VALUE FOR SCALING POINT 1
-19999 to 99999
Enter the first Display Value by using the front panel buttons. This is the same
for KEY and APLY scaling styles. The decimal point follows the dECPt selection.
ª
«
100.00
INP 2
INPUT VALUE FOR SCALING POINT 2
0to 29999
For Key-in (KEY) style, enter the known second Input Value using the front
panel buttons.
For Apply (APLY) style, the meter shows the previously stored Input Value for
Scaling Point 2. To retain this value, press the SEL button to advance to the next
parameter. To change the Input Value, press the RST button and apply the input
signal to the meter. Adjust the signal source externally until the desired Input
Value appears. Press the SEL button to enter the value being displayed.
5.1 MODULE 1 - SIGNAL INPUT PARAMETERS (1-INP)
PARAMETER MENU
ª
«
200v
rAN6E
INPUT RANGE
Select the input range that corresponds to the external signal. This selection
should be high enough to avoid input signal overload but low enough for the
desired input resolution. This selection and the position of the Input Range
Jumper must match.
200uA 200.00 μA
10u
2u
0.2u
0.002A
10.000 V
2.0000 V
200.00 mV
2.0000 mA
20.000 mA
200.00 V
20.000 V
200.00 mA
0.02A
200u
20u
0.2A
SELECTION RANGE
RESOLUTION
RANGE
RESOLUTION
SELECTION
ª
«
0.00
dECPt 0.000 0.00000.000.00
DISPLAY DECIMAL POINT
Select the decimal point location for the Input, MIN and MAX displays. This
selection also affects the dSP1 and dSP2 parameters and setpoint values and offset
value..
ª
«
0.00
OFSEt
DISPLAY OFFSET VALUE
The display can be corrected with an offset value. This can be used to
compensate for signal variations or sensor errors. This value is automatically
updated after a Zero Display to show how far the display is offset. A value of
zero will remove the effects of offset. The decimal point follows the dECPt
selection.
-19999 to 19999
ª
«
1
FILtr
FILTER SETTING
If the displayed value is difficult to read due to small process variations or
noise, increased levels of filtering will help to stabilize the display. Software
filtering effectively combines a fraction of the current input reading with a
fraction of the previous displayed reading to generate the new display.
Filter values represent no filtering (0), up to heavy filtering (3). A value of 1
for the filter uses 1/4 of the new input and 3/4 of the previous display to generate
the new display. A filter value of 2 uses 1/8 new and 7/8 previous. A filter value
of 3 uses 1/16 new and 15/16 previous.
0,1 2 3
ª
«
10
bANd
FILTER BAND
The filter will adapt to variations in the input signal. When the variation
exceeds the input filter band value, the filter disengages. When the variation
becomes less than the band value, the filter engages again. This allows for a
stable readout, but permits the display to settle rapidly after a large process
change. The value of the band is in display units, independent of the Display
Decimal Point position. A band setting of ‘0’ keeps the filter permanently
engaged at the filter level selected above.
0to 199 display units

E
3531-717-767-6511
USER INPUT ASSIGNMENT
Select the value(s) to which the User Input Function is assigned. The User
Input Assignment only applies if a selection of reset, or display hold is selected
in the User Input Function menu.
MODEDISPLAY
No Function
NO
DESCRIPTION
User Input disabled.
Program Mode Lock-out
P-Loc
Zero Input
(Edge triggered)
ZErO Zero the Input Display value causing
Display Reading to be Offset.
d-SEL
d-LEV
d-HLd
rESEt Resets the assigned value(s) to the current
input value.
HI-LO HI
dSPLO
See Programming Mode Access chart
(Module 3).
Setpoint 1 and 2 Reset
Setpoint 1 Reset
Setpoint 2 Reset
Reset both setpoint 1 and 2 outputs.
Resets setpoint 1 output.
Resets setpoint 2 output.
rSt12
rSt-1
rSt-2
USER INPUT FUNCTION
ª
«
NO
USrIN
ª
«
dSP
U-ASN
Display Select
(Edge Triggered)
Display Intensity Level
(Edge Triggered)
Display Hold
Reset (Edge triggered)
Advance once for each activation.
Increase intensity one level for each
activation.
Holds the assigned display, but all other
meter functions continue as long as
activated (maintained action). ª
«
LO
U-Act
USER INPUT ACTIVE LEVEL
Select whether the user input is configured as active low or active high.
LO HI
Entering Code 66 will overwrite all user settings with
the factory settings. The meter will display rESEt and then
return to CodE 00. Press the PAR button to exit the module.
MIN DISPLAY ENABLE
YESNO
ª
«
NO
LO-En
ª
«
NO
FCS
ª
«
2.0
LO-t MIN CAPTURE DELAY TIME
When the Input Display is below the present MIN value for the entered delay
time, the meter will capture that display value as the new MIN reading. A delay
time helps to avoid false captures of sudden short spikes.
0.0 to 999.9 sec.
Select yES to perform any of the Factory Service Operations shown below.
FACTORY SERVICE OPERATIONS
yESNO
Enables the Minimum Display Capture capability.
The PAXLA uses stored calibration values to provide
accurate measurements. Over time, the electrical
characteristics of the components inside the PAXLA will
slowly change with the result that the stored calibration
values no longer accurately define the input circuit. For most applications,
recalibration every 1 to 2 years should be sufficient.
Calibration of the PAXLA involves a calibration which should only be
performed by individuals experienced in calibrating electronic equipment. Allow
30 minute warm up before performing any calibration related procedure. The
following procedures should be performed at an ambient temperature of 15 to 35
°C (59 to 95 °F).
CAUTION: The accuracy of the calibration equipment will directly affect the
accuracy of the PAXLA.
CALIBRATION
ª
«
66
CodE
RESTORE FACTORY DEFAULT SETTINGS
Entering Code 50 will display the version (x.x) of the
meter. The display then returns to CodE 00. Press the PAR
button to exit the module.
ª
«
50
CodE
VIEW MODEL AND VERSION DISPLAY
ª
«
48
CodE
5.2 MODULE 2 - SECONDARY FUNCTION PARAMETERS (2-SEC)
PARAMETER MENU
ª
«
2.0
HI-t MAX CAPTURE DELAY TIME
When the Input Display is above the present MAX value for the entered
delay time, the meter will capture that display value as the new MAX reading.
A delay time helps to avoid false captures of sudden short spikes.
0.0 to 999.9 sec.
ª
«
NO
HI-En
MAX DISPLAY ENABLE
YESNO
Enables the Maximum Display Capture capability.

E
354 www.redlion.net
5.3 MODULE 3 - DISPLAY AND FRONT PANEL BUTTON
PARAMETERS (3-dSP)
PARAMETER MENU
ª
«
1
dSP-t
DISPLAY UPDATE TIME
This parameter sets the display update time in seconds.
1
0.5 2seconds
The yES selection allows the SEL button to toggle through the enabled
displays.
FRONT PANEL DISPLAY SELECT ENABLE (SEL)
ª
«
yES
SEL
yES NO
This parameter enables the RST button or user input to zero the input display
value, causing the display reading to be offset.
Note: For this parameter to operate, the RST button or User Input being used
must be set to dSP and the Input value must be displayed. If these conditions are
not met, the display will not zero.
ZERO DISPLAY WITH DISPLAY RESET
ª
«
NO
ZErO
yES NO
The yES selection allows the display to automatically scroll through the
enabled displays. The scroll rate is every 4 seconds. This parameter only appears
when the MAX or MIN displays are enabled.
DISPLAY SCROLL ENABLE
ª
«
NO
ScroL
yES NO
Enter the desired Display Intensity Level (1-3). The display will actively dim
or brighten as levels are changed.
DISPLAY INTENSITY LEVEL
1 to 3
ª
«
3
d-LEV
This selection allows the RST button to reset the selected value(s).
FRONT PANEL RESET ENABLE (RST)
ª
«
dSP
rSt HI-LO
LO
HI
NO dSP
ª
«
OFF
b-LIt
UNITS LABEL BACKLIGHT*
The Units Label Kit Accessory contains a sheet of custom unit overlays
which can be installed in to the meter’s bezel display assembly. The backlight
for these custom units is activated by this parameter.
ON OFF
Current Calibration
1. Connect the negative lead of a precision DC current source with an accuracy
of 0.01% or better to the COMM terminal. Leave the positive lead of the DC
current source unconnected.
2. With the display at CodE 48, press the PAR button. Unit will display CAL NO
3. Press the RST button to select the range to be calibrated.
4. Press the PAR button. Display reads 0.0A
5. With the positive lead of the DC current source unconnected, press PAR.
Display reads CALC for about 8 seconds.
6. When the display reads the selected range, connect the positive lead of the
DC
current source to the current input and apply full-scale input signal for the
range. (Note: For 200 mA range, apply 100 mA as indicated on the display.)
Press PAR. Display reads CALC for about 8 seconds.
7. Repeat steps 3 through 6 for each input range to be calibrated. When display
reads CAL NO, press the PAR button to exit calibration.
Voltage Calibration
1. Connect a precision DC voltage source with an accuracy of 0.01% or better
to the volt input and COMM terminals of the PAXLA. Set the output of the
voltage source to zero.
2. With the display at CodE 48, press the PAR button. Unit will display CAL NO.
3. Press the RST button to select the range to be calibrated.
4. Press the PAR button. Display reads 0.0v.
5. With the voltage source set to zero (or a dead short applied to the input), press
PAR. Display reads CALC for about 8 seconds.
6. When the display reads the selected range, apply full-scale input signal for the
range. (Note: For 200V range, apply 100V as indicated on the display.) Press
PAR. Display reads CALC for about 8 seconds.
7. Repeat steps 3 through 6 for each input range to be calibrated. When display
reads CAL NO, press the PAR button to exit calibration

E
3551-717-767-6511
The Security Code determines the programming mode and the accessibility
of programming parameters. This code can be used along with the Program
Mode Lock-out (P-Loc) in the User Input Function parameter (Module 1).
Two programming modes are available. Full Programming mode allows all
parameters to be viewed and modified. Quick Programming mode permits only
the Setpoint values to be modified, but allows direct access to these values
without having to enter Full Programming mode.
Programming a Security Code other than 0, requires this code to be entered
at the CodE prompt in order to access Full Programming mode. Depending on the
code value, Quick Programming may be accessible before the CodE prompt
appears (see chart).
PROGRAMMING SECURITY CODE
000 to 999
ª
«
000
CodE
USER INPUT
FUNCTION
USER INPUT
STATE
SECURITY
CODE
MODE WHEN “PAR”
BUTTON IS PRESSED
FULL PROGRAMMING
MODE ACCESS
0Full Programming Immediate Access
not P-Loc ______ 1-99 Quick Programming
After Quick Programming
with correct code entry
at CodE prompt *
100-999 CodE prompt With correct code entry
at CodE prompt *
0Programming Lock No Access
Active 1-99 Quick Programming No Access
P-Loc
100-999 CodE prompt With correct code entry
at CodE prompt *
Not Active 0-999 Full Programming Immediate Access
5.4 MODULE 4 - SETPOINT OUTPUT PARAMETERS (4-SPt)
PARAMETER MENU
Low Acting (Unbalanced Hys) = LO-Ub
High Acting (Unbalanced Hys) = HI-Ub
Enter the setpoint (output) to be programmed. The nin the following
parameters will reflect the chosen setpoint number. After the chosen setpoint
is completely programmed, the display will return to SPSEL. Repeat steps for
each setpoint to be programmed. Select NO to exit the module.
SETPOINT SELECT
ª
«
NO
SPSEL NO SP-1 SP-2
Select YES to enable Setpoint nand access the setup parameters. If NO is
selected, the unit returns to SPSEL and Setpoint nis disabled.
SETPOINT ENABLE
ª
«
NO
Enb-n YES NO
Enter the action for the selected setpoint (output). See Setpoint Output
Figures for a visual detail of each action.
SETPOINT ACTION
ª
«
HI-Ub
Act-n
HI-bL
LO-bL HI-Ub LO-Ub
High Acting, with balanced hysteresis
Low Acting, with balanced hysteresis
High Acting, with unbalanced hysteresis
Low Acting, with unbalanced hysteresis
=
HI-bL
=
LO-bL
=
HI-Ub
=
LO-Ub
High Acting (Balanced Hys) = HI-bL Low Acting (Balanced Hys) = LO-bL
SETPOINT VALUE
Enter the desired setpoint value. The decimal point position for the setpoint
and hysteresis values follow the selection set in Module 1.
-19999 to 99999
ª
«
001.00
SPt-n
ª
«
2
HYS-n
HYSTERESIS VALUE
1 to 59999
Enter desired hysteresis value. See Setpoint Output Figures for visual
explanation of how setpoint output actions (balanced and unbalanced) are
affected by the hysteresis. When the setpoint is a control output, usually
balanced hysteresis is used. For alarm applications, usually unbalanced
hysteresis is used. For unbalanced hysteresis modes, the hysteresis functions on
the low side for high acting setpoints and functions on the high side for low
acting setpoints.
Note: Hysteresis eliminates output chatter at the switch point, while time delay
can be used to prevent false triggering during process transient events.

E
356 www.redlion.net
ª
«
0.0
tOF-n
OFF TIME DELAY
0.0 to 599.9 Sec
Enter the time value in seconds that the output is delayed from turning off
after the trigger point is reached. A value of 0.0 allows the meter to update the
output status per the response time listed in the Specifications.
Enter the reset action of the output. See figure for details.
Auto = Automatic action; This action allows the output to automatically reset off
at the trigger points per the Setpoint Action shown in Setpoint Output
Figures. The “on” output may be manually reset (off) immediately by the
front panel RST button or user input.The output remains off until the trigger
point is crossed again.
LAtCH = Latch with immediate reset action; This action latches the output on at
the trigger point per the Setpoint Action shown in Setpoint Output Figures.
Latch means that the output can only be turned off by the front panel RST
button or user input manual reset, or meter power cycle. When the user input
or RST button is activated (momentary action), the corresponding “on” output
is reset immediately and remains off until the trigger point is crossed again.
(Previously latched alarms will be off if power up Display Value is lower than
setpoint value.)
L-dLY = Latch with delay reset action; This action latches the output on at the
trigger point per the Setpoint Action shown in Setpoint Output Figures. Latch
means that the output can only be turned off by the front panel RST button or
user input manual reset, or meter power cycle. When the user input or RST
button is activated (momentary action), the meter delays the event until the
corresponding “on” output crosses the trigger off point. (Previously latched
outputs are off if power up Display Value is lower than setpoint value. During
a power cycle, the meter erases a previous L-dLY reset if it is not activated at
power up.)
OUTPUT RESET ACTION
LAtCHAuto L-dLY
ª
«
Auto
rSt-n
Setpoint Output Reset Actions
This parameter enables the RST button or user input to reset the output when
the display is reset.
Note: For this parameter to operate, the RST button or User Input being used
must be set to dSP and the Input value must be displayed. If these conditions are
not met, the output will not reset.
ª
«
YES
rEn-n
OUTPUT RESET WITH DISPLAY RESET
YESNO
When YES, the output is disabled (after a power up) until the trigger point is
crossed. Once the output is on, the output operates normally per the Setpoint
Action and Output Reset Action.
ª
«
NO
Stb-n
STANDBY OPERATION
YESNO
ª
«
0.0
tON-n
ON TIME DELAY
Enter the time value in seconds that the output is delayed from turning on
after the trigger point is reached. A value of 0.0 allows the meter to update the
output status per the response time listed in the Specifications.
0.0 to 599.9 Sec

E
3571-717-767-6511
PAXLA PROGRAMMING QUICK OVERVIEW
Press PAR key to enter
Programming Mode.

E
358 www.redlion.net
OPROCESS, VOLTAGE, CURRENT, AND TEMPERATURE INPUTS
O5-DIGIT 0.56" HIGH LED DISPLAY
OPROGRAMMABLE FUNCTION KEYS/USER INPUT
O9 DIGIT TOTALIZER (INTEGRATOR) WITH BATCHING
OOPTIONAL CUSTOM UNITS OVERLAY W/BACKLIGHT
ONEMA 4X/IP65 SEALED FRONT BEZEL
GENERAL DESCRIPTION
The DP5 Panel Meters offer many features and performance capabilities to
suit a wide range of industrial applications. These meters are available in three
different models to handle various analog inputs, including DC Voltage/Current,
Process, and Temperature Inputs. Refer to pages 4 and 5 for the details on the
specific models.
The meters provide a MAX and MIN reading memory with programmable
capture time. The capture time is used to prevent detection of false max or min
readings which may occur during start-up or unusual process events.
The signal totalizer (integrator) can be used to compute a time-input product.
This can be used to provide a readout of totalized flow, calculate service
intervals of motors or pumps, etc. The totalizer can also accumulate batch
weighing operations.
Once the meters have been initially configured, the parameter list may be
locked out from further modification.
The meters have been specifically designed for harsh industrial environments.
With NEMA 4X/IP65 sealed bezel and extensive testing of noise effects to CE
requirements, the meter provides a tough yet reliable application solution.
SAFETY SUMMARY
All safety related regulations, local codes and instructions that appear in this
literature or on equipment must be observed to ensure personal safety and to
prevent damage to either the instrument or equipment connected to it. If
equipment is used in a manner not specified by the manufacturer, the protection
provided by the equipment may be impaired.
MODEL DP5 – 1/8 DIN ANALOG INPUT PANEL METERS
DIMENSIONS In inches (mm) Note: Recommended minimum clearance (behind the panel) for mounting clip installation is
2.1" (53.4) H x 5.0" (127) W.
CAUTION: Risk of Danger.
Read complete instructions prior to
installation and operation of the unit.
CAUTION: Risk of electric shock.
C
C
US LISTED
US LISTED
UL
R
IND. CONT. EQ.
51EB

E
3591-717-767-6511
Ordering Information . . . . . . . . . . . . . . . . . . . 2
General Meter Specifications. . . . . . . . . . . . . 3
Universal DC Input Panel Meter . . . . . . . . . . 4
Process Input Panel Meter . . . . . . . . . . . . . . 4
Thermocouple and RTD Input Meter . . . . . . . 5
Accessories . . . . . . . . . . . . . . . . . . . . . . . . . 5
Installing the Meter . . . . . . . . . . . . . . . . . . . . 6
Setting the Jumpers . . . . . . . . . . . . . . . . . . . 6
Wiring the Meter . . . . . . . . . . . . . . . . . . . . . . 7
Reviewing the Front Buttons and Display . . . 9
Programming the Meter . . . . . . . . . . . . . . . 10
Factory Service Operations . . . . . . . . . . . . . 17
Parameter Value Chart . . . . . . . . . . . . . . . . 19
Programming Overview. . . . . . . . . . . . . . . . 20
TABLE OFCONTENTS
ORDERING INFORMATION
DP5 00
D - DC Volt/Current Input
P - Process Input
T - Thermocouple and RTD Input
0 - Red LED Display
0 - 85 to 250 VAC
1 - 11 to 36 VDC, 24 VAC
Meter Part Numbers
Accessories Part Number
PAXLBK10Units Label Kit Accessory (Not required for DP5T)PAXLBKAccessories
TYPE PART NUMBERSDESCRIPTIONMODEL NO.

E
360 www.redlion.net
1. DISPLAY: 5 digit, 0.56" (14.2 mm) red LED, (-19999 to 99999)
2. POWER:
AC Versions:
AC Power: 85 to 250 VAC, 50/60 Hz, 10 VA
Isolation: 2300 Vrms for 1 min. to all inputs.
DC Versions:
DC Power: 11 to 36 VDC, 11 W
AC Power: 24 VAC, ± 10%, 50/60 Hz, 10 VA
Isolation: 500 Vrms for 1 min. to all inputs (50 V working).
3. ANNUNCIATORS:
MAX - maximum readout selected
MIN - minimum readout selected
TOT - totalizer readout selected, flashes when total overflows
Units Label - optional units label backlight
4. KEYPAD: 3 programmable function keys, 5 keys total
5. A/D CONVERTER: 16 bit resolution
6. UPDATE RATES:
A/D conversion rate: 10 readings/sec.
Step response: 200 msec. max. to within 99% of final readout value
(digital filter and internal zero correction disabled)
700 msec. max. (digital filter disabled, internal zero correction enabled)
Display update rate: 1 to 10 updates/sec.
Max./Min. capture delay time: 0 to 3275 sec.
7. DISPLAY MESSAGES:
“OLOL” - Appears when measurement exceeds + signal range.
“ULUL” - Appears when measurement exceeds - signal range
DP5T: “OPEN” - Appears when open sensor is detected.
DP5T: “SHrt” - Appears when shorted sensor is detected (RTD only)
“. . . .” - Appears when display values exceed + display range.
“- . . .” - Appears when display values exceed - display range.
8. INPUT CAPABILITIES: See specific product specifications, pages 4-5
9. EXCITATION POWER: See specific product specifications, pages 4-5
10. LOW FREQUENCY NOISE REJECTION:
Normal Mode: > 60 dB @ 50 or 60 Hz ±1%, digital filter off
Common Mode: >100 dB, DC to 120 Hz
11. USER INPUT: One software defined user input
Max. Continuous Input: 30 VDC
Isolation To Sensor Input Common: Not isolated. Do not tie commons together.
Response Time : 50 msec. max.
Logic State: Jumper selectable for sink/source logic
12. TOTALIZER:
Time Base: second, minute, hour, or day
Time Accuracy: 0.01% typical
Decimal Point: 0 to 0.0000
Scale Factor: 0.001 to 65.000
Low Signal Cut-out: -19,999 to 99,999
Total: 9 digits, display alternates between high order and low order readouts
13. MEMORY: Nonvolatile E2PROM retains all programmable parameters
and display values.
14. ENVIRONMENTAL CONDITIONS:
Operating Temperature Range: 0 to 50°C
Storage Temperature Range: -40 to 60°C
Operating and Storage Humidity: 0 to 85% max. RH non-condensing
Altitude: Up to 2000 meters
15. CERTIFICATIONS AND COMPLIANCES:
SAFETY
UL Recognized Component, File #E179259, UL61010-1, CSA C22.2
No. 61010-1
DP5T Only: File # E156876, UL873, CSA C22.2 No. 24
Recognized to U.S. and Canadian requirements under the Component
Recognition Program of Underwriters Laboratories, Inc.
UL Listed, File # E137808, UL508, CSA C22.2 No. 14-M95
LISTED by Und. Lab. Inc. to U.S. and Canadian safety standards
Type 4X Enclosure rating (Face only), UL50
IECEE CB Scheme Test Certificate #US/8843A/UL
CB Scheme Test Report #04ME11209-20041018
Issued by Underwriters Laboratories, Inc.
IEC 61010-1, EN 61010-1: Safety requirements for electrical equipment
for measurement, control, and laboratory use, Part I
IP65 Enclosure rating (Face only), IEC 529
IP20 Enclosure rating (Rear of unit), IEC 529
ELECTROMAGNETIC COMPATIBILITY
Notes:
1. Self-recoverable loss of performance during EMI disturbance at 10 V/m:
Measurement input signal may deviate during EMI disturbance.
For operation without loss of performance:
Unit is mounted in a metal enclosure (Buckeye SM7013-0 or equivalent)
I/O and power cables are routed in metal conduit connected to earth
ground.
Refer to EMC Installation Guidelines section of the bulletin for additional
information.
16. CONNECTIONS: High compression cage-clamp terminal block
Wire Strip Length: 0.3" (7.5 mm)
Wire Gage: 30-14 AWG copper wire
Torque: 4.5 inch-lbs (0.51 N-m) max.
17. CONSTRUCTION: This unit is rated for NEMA 4X/IP65 outdoor use.
IP20 Touch safe. Installation Category II, Pollution Degree 2. One piece
bezel/case. Flame resistant. Synthetic rubber keypad. Panel gasket and
mounting clip included.
18. WEIGHT: 7 oz. (200 g)
GENERAL METER SPECIFICATIONS
VIN > 3.6 VDC VIN < 0.9 VDC
Inactive
VIN < 0.9 VDC VIN > 3.6 VDC
Active
SINKING INPUTS
22 KΩΩpull-up to +5 V
SOURCING INPUTS
22 KΩΩpull-down
INPUT STATE
Power mains class A
Enclosure class AEN 55011RF interference
Emissions to EN 50081-2
150 KHz - 80 MHz
Level 3; 10 V/rms EN 61000-4-6RF conducted interference
Level 3; 2 Kv power
Level 4; 2 Kv I/OEN 61000-4-4Fast transients (burst)
80 MHz - 1 GHz
Level 3; 10 V/m 1
EN 61000-4-3Electromagnetic RF fields
Level 3; 8 Kv air
Level 2; 4 Kv contactEN 61000-4-2Electrostatic discharge
200 Hz, 50% duty cycle
900 MHz ±5 MHz
Immunity to EN 50082-2
Level 3; 10 V/mENV 50204Simulation of cordless telephones

E
3611-717-767-6511
MODEL DP5D - UNIVERSAL DC INPUT
MODEL DP5P - PROCESS INPUT
* After 20 minute warm-up. Accuracy is specified in two ways:
Accuracy over an 18 to 28°C and 10 to 75% RH environment; and
accuracy over a 0 to 50°C and 0 to 85%RH (non-condensing
environment). Accuracy over the 0 to 50°C range includes the
temperature coefficient effect of the meter.
EXCITATION POWER:
Transmitter Power: 24 VDC, ±5%, regulated, 50 mA max.
OFOUR VOLTAGE RANGES (300 VDC Max)
OFIVE CURRENT RANGES (2A DC Max)
O24 VDC TRANSMITTER POWER
ODUAL RANGE INPUT (20 mA or 10 VDC)
O24 VDC TRANSMITTER POWER
DP5D SPECIFICATIONS
INPUT RANGES:
DP5P SPECIFICATIONS
SENSOR INPUTS:
INPUT
RANGE
ACCURACY*
(18 to 28°C)
ACCURACY*
(0 to 50°C)
IMPEDANCE/
COMPLIANCE
MAX
CONTINUOUS
OVERLOAD
RESOLUTION
±200 mVDC 0.03% of reading
+30 μV
0.12% of reading
+40 μV1.066 Mohm 100 V 10 μV
±2 VDC 0.03% of reading
+0.3 mV
0.12% of reading
+0.4 mV 1.066 Mohm 300 V 0.1 mV
±20 VDC 0.03% of reading
+3 mV
0.12% of reading
+4 mV 1.066 Mohm 300 V 1 mV
±300 VDC 0.05% of reading
+30 mV
0.15% of reading
+40 mV 1.066 Mohm 300 V 10 mV
±200 μADC 0.03% of reading
+0.03 μA
0.12% of reading
+0.04μA1.11 Kohm 15 mA 10 nA
±2 mADC 0.03% of reading
+0.3 μA
0.12% of reading
+0.4 μA111 ohm 50 mA 0.1 μA
±20 mADC 0.03% of reading
+3μA
0.12% of reading
+4 μA11.1 ohm 150 mA 1 μA
±200 mADC 0.05% of reading
+30 μA
0.15% of reading
+40 μA1.1 ohm 500 mA 10 μA
±2 ADC 0.5% of reading
+0.3 mA
0.7% of reading
+0.4 mA 0.1 ohm 3 A 0.1 mA
* After 20 minute warm-up. Accuracy is specified in two ways: Accuracy over an 18
to 28°C and 10 to 75% RH environment; and accuracy over a 0 to 50°C and 0 to
85%RH (non-condensing environment). Accuracy over the 0 to 50°C range
includes the temperature coefficient effect of the meter.
EXCITATION POWER:
Transmitter Power: 24 VDC, ±5%, regulated, 50 mA max.
INPUT
(RANGE)
ACCURACY*
(18 to 28°C)
ACCURACY*
(0 to 50°C)
IMPEDANCE/
COMPLIANCE
MAX
CONTINUOUS
OVERLOAD
DISPLAY
RESOLUTION
20 mA
(-2 to 26 mA)
0.03% of
reading +2 μA
0.12% of
reading +3 μA20 ohm 150 mA 1 μA
10 VDC
(-1 to 13 VDC)
0.03% of
reading +2 mV
0.12% of
reading +3 mV 500 Kohm 300 V 1 mV

E
362 www.redlion.net
MODEL DP5T - THERMOCOUPLE AND RTD INPUT
ACCESSORIES
OTHERMOCOUPLE AND RTD INPUTS
OCONFORMS TO ITS-90 STANDARDS
OTIME-TEMPERATURE INTEGRATOR
DP5T SPECIFICATIONS
READOUT:
Resolution: Variable: 0.1, 0.2, 0.5, or 1, 2, or 5 degree
Scale: F or C
Offset Range: -19,999 to 99,999 display units
THERMOCOUPLE INPUTS:
Input Impedance: 20 MΩ
Lead Resistance Effect: 0.03μV/ohm
Max. Continuous Overvoltage: 30 V
RTD INPUTS:
Type: 3 or 4 wire, 2 wire can be compensated for lead wire resistance
Excitation current: 100 ohm range: 165 μA
10 ohm range: 2.6 mA
Lead resistance: 100 ohm range: 10 ohm/lead max.
10 ohm range: 3 ohms/lead max.
Max. continuous overload: 30 V
DIRECT READOUT:
Input range: -10 to 65 mV
0 to 400 ohms, high range
0 to 25 ohms, low range
Display range: -19999 to 99999
STANDARD
***
ACCURACY*
(0 to 50°C)
ACCURACY*
(18 to 28°C)
RANGE
no official
standard
0.9°C0.4°C-100 to 260°C
10 ohm Copper
alpha = .00427
INPUT TYPE
no official
standard
0.5°C0.2°C-80 to 260°C
120 ohm Nickel
alpha = .00672
no official
standard
1.6°C0.4°C-200 to 850°C
100 ohm Pt
alpha = .003919
IEC 7511.6°C0.4°C-200 to 850°C
100 ohm Pt
alpha = .00385
0.20% of reading
+ 0.007 Ω
0.04% of reading
+ 0.005 Ω
0 to 25 Ω
(1 MΩres.)
Direct
10 ohm range
0.12% of reading
+ 0.05 Ω
0.02% of reading
+ 0.04 Ω
0 to 400 Ω
(10 MΩres.)
Direct
100 ohm range
ACCURACY*
(0 to 50°C)
0.12% of reading
+ 5μV
0.02% of reading
+ 4μV
-10 to 65mV
(1 μV res.)
Direct
mV range
ACCURACY*
(18 to 28°C)
RANGEINPUT TYPE
WIRE COLOR
INPUT
TYPE RANGE ACCURACY*
(0 to 50°C) STANDARD
ANSI BS 1843
T-200 to 400°C
-270 to -200°C
1.2°C
**
2.1°C ITS-90 (+) blue
(-) red
(+) white
(-) blue
E-200 to 871°C
-270 to -200°C
1.0°C
**
2.4°C ITS-90 (+) purple
(-) red
(+) brown
(-) blue
J-200 to 760°C 1.1°C 2.3°C ITS-90 (+) white
(-) red
(+) yellow
(-) blue
K-200 to 1372°C
-270 to -200°C
1.3°C
**
3.4°C ITS-90 (+) yellow
(-) red
(+) brown
(-) blue
R-50 to 1768°C 1.9°C 4.0°C ITS-90 no
standard
(+) white
(-) blue
S-50 to 1768°C 1.9°C 4.0°C ITS-90 no
standard
(+) white
(-) blue
B100 to 300°C
300 to 1820°C
3.9°C
2.8°C
5.7°C
4.4°C ITS-90 no
standard
no
standard
N-200 to 1300°C
-270 to -200°C
1.3°C
**
3.1°C ITS-90 (+) orange
(-) red
(+) orange
(-) blue
C
(W5/W26) 0 to 2315°C 1.9°C 6.1°C ASTM
E988-90***
no
standard
no
standard
*After 20 min. warm-up. Accuracy is specified in two ways: Accuracy over an
18 to 28°C and 15 to 75% RH environment; and Accuracy over a 0 to 50°C and 0
to 85% RH (non condensing) environment. Accuracy specified over the 0 to 50°C
operating range includes meter tempco and ice point tracking effects. The
specification includes the A/D conversion errors, linearization conformity, and
thermocouple ice point compensation. Total system accuracy is the sum of meter
and probe errors. Accuracy may be improved by field calibrating the meter readout
at the temperature of interest.
** The accuracy over the interval -270 to -200°C is a function of temperature,
ranging from 1°C at -200°C and degrading to 7°C at -270°C. Accuracy may be
improved by field calibrating the meter readout at the temperature of interest.
*** These curves have been corrected to ITS-90.
ACCURACY*
(18 to 28°C)
UNITS LABEL KIT (PAXLBK) - Not required for DP5T
Each meter has a units indicator with backlighting that can be customized
using the Units Label Kit. The backlight is controlled in the programming.
Each DP5T meter is shipped with °F and °C overlay labels which can be
installed into the meter’s bezel display assembly.

E
3631-717-767-6511
Installation
The DP5 meets NEMA 4X/IP65 requirements for indoor use when properly
installed. The unit is intended to be mounted into an enclosed panel. Prepare
the panel cutout to the dimensions shown. Remove the panel latch from the
unit. Slide the panel gasket over the rear
of the unit to the back of the bezel. The
unit should be installed fully
assembled. Insert the
unit into the panel cutout.
While holding the unit in place, push the panel latch over the rear of the unit
so that the tabs of the panel latch engage in the slots on the case. The panel
latch should be engaged in the farthest forward slot possible. To achieve a
proper seal, tighten the latch screws evenly until the unit is snug in the panel
(Torque to approximately 7 in-lbs [79N-cm]). Do not over-tighten the screws.
Installation Environment
The unit should be installed in a location that does not exceed the maximum
operating temperature and provides good air circulation. Placing the unit near
devices that generate excessive heat should be avoided.
The bezel should be cleaned only with a soft cloth and neutral soap product.
Do NOT use solvents. Continuous exposure to direct sunlight may accelerate
the aging process of the bezel.
Do not use tools of any kind (screwdrivers, pens, pencils, etc.) to operate
the keypad of the unit.
PANEL CUT-OUT
1.0 INSTALLING THE METER
2.0 SETTING THE JUMPERS
The meter can have up to two jumpers that must be checked and / or changed
prior to applying power. The two jumpers are: Input Range and User Input
Logic. The following Jumper Selection Figures show an enlargement of the
jumper area.
To access the jumpers, remove the meter base from the case by firmly
squeezing and pulling back on the side rear finger tabs. This should lower the
latch below the case slot (which is located just in front of the finger tabs). It is
recommended to release the latch on one side, then start the other side latch.
User Input Logic Jumper
This jumper selects the logic state of the user input. If the user input is not
used, it is not necessary to check or move this jumper.
DP5D Jumper Selection
Main
Circuit
Board
JUMPER LOCATIONS
CURRENT
USER INPUT
VOLT/
OHM
JUMPER SELECTIONS
The indicates factory setting.
Input Range Jumper
One jumper is used for voltage or current input ranges. Select the proper
input range high enough to avoid input signal overload. Only one jumper is
allowed in this area. Do not have a jumper in both the voltage and current
ranges at the same time. Avoid placing the jumper across two ranges.

E
364 www.redlion.net
DP5P Jumper Selection
JUMPER SELECTIONS
The indicates factory setting.
Main
Circuit
Board
USER INPUT
JUMPER
LOCATION
WIRING OVERVIEW
Electrical connections are made via screw-clamp terminals located on the
back of the meter. All conductors should conform to the meter’s voltage and
current ratings. All cabling should conform to appropriate standards of good
installation, local codes and regulations. It is recommended that power supplied
to the meter (DC or AC) be protected by a fuse or circuit breaker.
When wiring the meter, compare the numbers embossed on the back of the
meter case against those shown in wiring drawings for proper wire position.
Strip the wire, leaving approximately 0.3" (7.5 mm) bare lead exposed (stranded
wires should be tinned with solder). Insert the lead under the correct screw-
clamp terminal and tighten until the wire is secure. (Pull wire to verify
tightness.) Each terminal can accept up to one #14 AWG (2.55 mm) wire, two
#18 AWG (1.02 mm), or four #20 AWG (0.61 mm).
EMC INSTALLATION GUIDELINES
Although this meter is designed with a high degree of immunity to Electro-
Magnetic Interference (EMI), proper installation and wiring methods must be
followed to ensure compatibility in each application. The type of the electrical
noise, its source or the method of coupling into the unit may be different for
various installations.Listed below are some EMC guidelines for successful
installation in an industrial environment.
1. The meter should be mounted in a metal enclosure, which is properly
connected to protective earth.
2. Use shielded (screened) cables for all Signal and Control inputs. The shield
(screen) pigtail connection should be made as short as possible. The
connection point for the shield depends somewhat upon the application.
Listed below are the recommended methods of connecting the shield, in order
of their effectiveness.
a. Connect the shield only at the panel where the unit is mounted to earth
ground (protective earth).
b. Connect the shield to earth ground at both ends of the cable, usually when
the noise source frequency is above 1 MHz.
c. Connect the shield to common of the unit and leave the other end of the
shield unconnected and insulated from earth ground.
3. Never run Signal or Control cables in the same conduit or raceway with AC
power lines, conductors feeding motors, solenoids, SCR controls, and
heaters, etc. The cables should be run in metal conduit that is properly
grounded. This is especially useful in applications where cable runs are long
and portable two-way radios are used in close proximity or if the installation
is near a commercial radio transmitter.
4. Signal or Control cables within an enclosure should be routed as far away as
possible from contactors, control relays, transformers, and other noisy
components.
5. In extremely high EMI environments, the use of external EMI suppression
devices, such as ferrite suppression cores, is effective. Install them on Signal
and Control cables as close to the unit as possible. Loop the cable through the
core several times or use multiple cores on each cable for additional
protection. Install line filters on the power input cable to the unit to suppress
power line interference. Install them near the power entry point of the
enclosure. The following EMI suppression devices (or equivalent) are
recommended:
Ferrite Suppression Cores for signal and control cables:
Fair-Rite # 0443167251 (RLC #FCOR0000)
TDK # ZCAT3035-1330A
Steward #28B2029-0A0
Line Filters for input power cables:
Schaffner # FN610-1/07 (RLC #LFIL0000)
Schaffner # FN670-1.8/07
Corcom #1VR3
Note: Reference manufacturer’s instructions when installing a line filter.
6. Long cable runs are more susceptible to EMI pickup than short cable runs.
Therefore, keep cable runs as short as possible.
7. Switching of inductive loads produces high EMI. Use of snubbers across
inductive loads suppresses EMI.
Snubber: RLC#SNUB0000.
3.0 WIRING THE METER
DP5T Jumper Selection
Main
Circuit
Board
JUMPER
LOCATION
JUMPER
LOCATION
USER INPUT
RTD
INPUT
JUMPER SELECTIONS
The indicates factory setting.
RTD Input Jumper
One jumper is used for RTD input ranges. Select the proper range to match the RTD
probe being used. It is not necessary to remove this jumper when not using RTD probes.

E
3651-717-767-6511
Current Signal
(self powered)
Terminal 4: +ADC
Terminal 5: -ADC
Voltage Signal
(self powered)
Terminal 3: +VDC
Terminal 5: -VDC
Current Signal (2 wire
requiring excitation)
Terminal 4: -ADC
Terminal 6: +ADC
DP5P INPUT SIGNAL WIRING
Current Signal (3 wire
requiring excitation)
Terminal 4: +ADC (signal)
Terminal 5: -ADC (common)
Terminal 6: +Volt supply
Voltage Signal (3 wire
requiring excitation)
Terminal 3: +VDC (signal)
Terminal 5: -VDC (common)
Terminal 6: +Volt supply
CAUTION: Sensor input common is NOT isolated from user input common. In order to preserve the safety of the meter application, the sensor input
common must be suitably isolated from hazardous live earth referenced voltages; or input common must be at protective earth ground potential. If not,
hazardous live voltage may be present at the User Input and User Input Common terminals. Appropriate considerations must then be given to the
potential of the user input common with respect to earth common.
CAUTION: Sensor input common is NOT isolated from user
input common. In order to preserve the safety of the meter
application, the sensor input common must be suitably isolated
from hazardous live earth referenced voltages; or input
common must be at protective earth ground potential. If not,
hazardous live voltage may be present at the User Input and
User Input Common terminals. Appropriate considerations
must then be given to the potential of the user input common
with respect to earth common.
3.1 POWER WIRING
AC Power
Terminal 1: VAC
Terminal 2: VAC
DC Power
Terminal 1: +VDC
Terminal 2: -VDC
Current Signal
(self powered)
Terminal 4: +ADC
Terminal 5: -ADC
Voltage Signal
(self powered)
Terminal 3: +VDC
Terminal 5: -VDC
Current Signal (2 wire
requiring excitation)
Terminal 4: -ADC
Terminal 6: +ADC
Before connecting signal wires, the Input Range Jumper should be verified for proper position.
3.2 INPUT SIGNAL WIRING
Current Signal (3 wire
requiring excitation)
Terminal 4: +ADC (signal)
Terminal 5: -ADC (common)
Terminal 6: +Volt supply
Voltage Signal (3 wire
requiring excitation)
Terminal 3: +VDC (signal)
Terminal 5: -VDC (common)
Terminal 6: +Volt supply
Potentiometer Signal
(3 wire requiring excitation)
Terminal 3: Wiper
Terminal 5: Low end of pot.
Terminal 6: High end of pot.
Input Range Jumper: 300 Volt
Module 1 Input Range: 300 Volt
Note: The Apply signal scaling style
should be used because the signal will
be in volts.
DP5D INPUT SIGNAL WIRING

E
366 www.redlion.net
DP5T INPUT SIGNAL WIRING
3-Wire RTD
Thermocouple 2-Wire RTD CAUTION: Sensor input common is NOT isolated
from user input common. In order to preserve the
safety of the meter application, the sensor input
common must be suitably isolated from hazardous
live earth referenced voltages; or input common
must be at protective earth ground potential. If
not, hazardous live voltage may be present at the
User Input and User Input Common terminals.
Appropriate considerations must then be given to
the potential of the user input common with
respect to earth common.
Sinking Logic
Terminal 8:
Terminal 7: }
In this logic, the user input of the meter
is internally pulled up to +5 V with 22 K
resistance. The input is active when it is
pulled low (<0 .9 V).
3.3 USER INPUT WIRING
Before connecting the wires, the User Input Logic Jumper should be verified for proper position. If not using the User Input then skip this section.
Connect external switching device between the
User Input terminal and User Comm.
*Display Readout Legends may be locked out in Factory Settings.
** Factory setting for the F1, F2, and RST keys is NO mode.
RST
F2W
F1V
PAR
DSP
KEY
Hold with F1V, F2Wto scroll value by x1000
Reset (Function key)**
Decrement selected parameter value
Function key 2; hold for 3 seconds for Second Function 2**
Increment selected parameter value
Function key 1; hold for 3 seconds for Second Function 1**
Store selected parameter and index to next parameterAccess parameter list
Quit programming and return to display modeIndex display through max/min/total/input readouts
PROGRAMMING MODE OPERATIONDISPLAY MODE OPERATION
4.0 REVIEWING THE FRONT BUTTONS AND DISPLAY
Sourcing Logic
Terminal 8: + VDC thru external switching device
Terminal 7: -VDC thru external switching device
In this logic, the user input of the meter is
internally pulled down to 0 V with 22 K
resistance. The input is active when a voltage
greater than 3.6 VDC is applied.

E
3671-717-767-6511
5.0 PROGRAMMING THE METER
OVERVIEW
PROGRAMMING MENU
DISPLAY MODE
The meter normally operates in the Display Mode. In this mode, the meter
displays can be viewed consecutively by pressing the DSP key. The
annunciators to the left of the display indicate which display is currently shown;
Max Value (MAX), Min Value (MIN), or Totalizer Value (TOT). Each of these
displays can be locked from view through programming. (See Module 3) The
Input Display Value is shown with no annunciator.
PROGRAMMING MODE
Two programming modes are available.
Full Programming Mode permits all parameters to be viewed and modified.
Upon entering this mode, the front panel keys change to Programming Mode
operations. This mode should not be entered while a process is running, since
the meter functions and User Input response may not operate properly while
in Full Programming Mode.
Quick Programming Mode permits only certain parameters to be viewed
and/or modified. When entering this mode, the front panel keys change to
Programming Mode operations, and all meter functions continue to operate
properly. Quick Programming Mode is configured in Module 3. Throughout
this document, Programming Mode (without Quick in front) always refers to
“Full” Programming Mode.
PROGRAMMING TIPS
The Programming Menu is organized into nine modules (See above). These
modules group together parameters that are related in function. It is
recommended to begin programming with Module 1 and proceed through each
module in sequence. If lost or confused while programming, press the DSP key
to exit programming mode and start over. When programming is complete, it is
recommended to record the meter settings on the Parameter Value Chart and
lock-out parameter programming with a User Input or lock-out code. (See
Modules 2 and 3 for lock-out details.)
FACTORY SETTINGS
Factory Settings may be completely restored in Module 9. This is a good
starting point if encountering programming problems. Throughout the module
description sections which follow, the factory setting for each parameter is
shown below the parameter display. In addition, all factory settings are listed on
the Parameter Value Chart following the programming section.
ALTERNATING SELECTION DISPLAY
In the module description sections which follow, the dual display with
arrows appears for each programming parameter. This is used to illustrate the
display alternating between the parameter (top display) and the parameter's
Factory Setting (bottom display). In most cases, selections or value ranges for
the parameter will be listed on the right.
Indicates Program Mode Alternating Display
Parameter
Selection/Value
ª
«
STEP BY STEP PROGRAMMING INSTRUCTIONS:
PROGRAMMING MODE ENTRY (PAR KEY)
The Programming Mode is entered by pressing the PAR key. If this mode is
not accessible, then meter programming is locked by either a security code or a
hardware lock. (See Modules 2 and 3 for programming lock-out details.)
MODULE ENTRY (ARROW & PAR KEYS)
Upon entering the Programming Mode, the display alternates between
and the present module (initially ). The arrow keys (F1Sand F2T) are used
to select the desired module, which is then entered by pressing the PAR key.
PARAMETER (MODULE) MENU (PAR KEY)
Each module has a separate parameter menu. These menus are shown at the
start of each module description section which follows. The PAR key is pressed
to advance to a particular parameter to be changed, without changing the
programming of preceding parameters. After completing a module, the display
will return to . From this point, programming may continue by selecting
and entering additional modules. (See MODULE ENTRY above.)
PARAMETER SELECTION ENTRY (ARROW & PAR KEYS)
For each parameter, the display alternates between the parameter and the
present selection or value for that parameter. For parameters which have a list
of selections, the arrow keys (F1Sand F2T) are used to sequence through the
list until the desired selection is displayed. Pressing the PAR key stores and
activates the displayed selection, and also advances the meter to the next
parameter.
NUMERICAL VALUE ENTRY (ARROW, RST & PAR KEYS)
For parameters which require a numerical value entry, the arrow keys can be
used to increment or decrement the display to the desired value. When an arrow
key is pressed and held, the display automatically scrolls up or scrolls down.
The longer the key is held, the faster the display scrolls.
The RST key can be used in combination with the arrow keys to enter large
numerical values, when the RST key is pressed along with an arrow key, the
display scrolls by 1000’s. Pressing the PAR key stores and activates the
displayed value, and also advances the meter to the next parameter.
PROGRAMMING MODE EXIT (DSP KEY or PAR KEY at )
The Programming Mode is exited by pressing the DSP key (from anywhere
in the Programming Mode) or the PAR key (with displayed). This will
commit any stored parameter changes to memory and return the meter to the
Display Mode. If a parameter was just changed, the PAR key should be pressed
to store the change before pressing the DSP key. (If power loss occurs before
returning to the Display Mode, verify recent parameter changes.)

E
368 www.redlion.net
5.1 MODULE 1 - SIGNAL INPUT PARAMETERS ()
PARAMETER MENU
DP5T PARAMETER MENU
ª
«
DP5D INPUT RANGE
Select the input range that corresponds to the external signal. This selection
should be high enough to avoid input signal overload but low enough for the
desired input resolution. This selection and the position of the Input Range
Jumper must match.
±2.0000 A
2A
SELECTION RANGE
RESOLUTION
RANGE
RESOLUTION
SELECTION
300u
20u
±300.00 V
±20.000 V
±200.00 mA
2u
±2.0000 V
±200.00 mV
±20.000 mA
±2.0000 mA
±200.00 µA
200uA
Refer to the appropriate Input Range for the selected
meter. Use only one Input Range, then proceed to Display
Decimal Point.
ª
«
DP5P INPUT RANGE
Select the input range that corresponds to the external signal.
±10.000 V
±20.000 mA
RANGE
RESOLUTION
SELECTION
DP5T INPUT TYPE
DP5T: TEMPERATURE DISPLAY OFFSET*
ª
«
TEMPERATURE SCALE
Select the temperature scale. This selection applies for Input, MAX, MIN,
and TOT displays. This does not change the user installed Custom Units
Overlay display. If changed, those parameters that relate to the temperature
scale should be checked.
°C°F
ª
«
0.000 0.00000.000.00
DISPLAY DECIMAL POINT
Select the decimal point location for the Input, MAX and MIN displays. (The
TOT display decimal point is a separate parameter.) This selection also affects
, and parameters.
⎫
⎬
⎭
These selections are not
available for DP5T.
These bottom selections are not
available for DP5T.
ª
«
Select the input type that corresponds to the input sensor. For RTD types,
check the RTD Input Jumper for matching selection. For sensor verification and
testing, use the direct readout modes.
rES-H
Direct ohms range low
Direct ohms range high
N TC
B TC
Cu427
Direct mV range
RTD copper 10 Ω
S TC
R TC
SELECTION TYPETYPESELECTION
Ni672
Pt392
RTD nickel 672
RTD platinum 392
K TC
Pt385
RTD platinum 385
C TC
J TC
E TC
TTC
tc-t
ª
«
DISPLAY ROUNDING*
100502010
521
Rounding selections other than one, cause the Input Display to ‘round’ to the
nearest rounding increment selected (ie. rounding of ‘5’ causes 122 to round to
120 and 123 to round to 125). Rounding starts at the least significant digit of
the Input Display. Remaining parameter entries (scaling point values, etc.) are
not automatically adjusted to this display rounding selection.
ª
«
The temperature display can be corrected with an offset value. This can be
used to compensate for probe errors, errors due to variances in probe placement
or adjusting the readout to a reference thermometer. This value is automatically
updated after a Zero Display to show how far the display is offset. A value of
zero will remove the affects of offset.
to
⎫
⎬
⎭

E
3691-717-767-6511
ª
«
DISPLAY VALUE FOR SCALING POINT 2
to
General Notes on Scaling
1. Input Values for scaling points should be confined to the limits of the Input
Range.
2. The same Input Value should not correspond to more than one Display Value.
(Example: 20 mA can not equal 0 and 10.)
This is referred to as read out jumps (vertical scaled segments).
3. The same Display Value can correspond to more than one Input Value.
(Example: 0 mA and 20 mA can equal 10.)
This is referred to as readout dead zones (horizontal scaled segments).
4. The maximum scaled Display Value spread between range maximum and
minimum is limited to 65,535. For example using +20 mA range the
maximum +20 mA can be scaled to is 32,767 with 0 mA being 0 and Display
Rounding of 1. (Decimal points are ignored.) The other half of 65,535 is for
the lower half of the range 0 to -20 mA even if it is not used. With Display
Rounding of 2, +20 mA can be scaled for (32,767 x 2 =) 65,535 but with even
Input Display values shown.
5. For input levels beyond the first programmed Input Value, the meter extends
the Display Value by calculating the slope from the first two coordinate pairs
( / & / ). If = 4 mA and = 0, then 0 mA
would be some negative Display Value. The calculations stop at the limits of
the Input Range.
6. For input levels beyond the last programmed Input Value, the meter extends
the Display Value by calculating the slope from the two sequential coordinate
pairs. The calculations stop at the limits of the Input Range.
Enter the second coordinating Display Value by using the arrow keys. This is
the same for and scaling styles.
ª
«
FILTER SETTING*
The input filter setting is a time constant expressed in tenths of a second. The
filter settles to 99% of the final display value within approximately 3 time
constants. This is an Adaptive Digital Filter which is designed to steady the
Input Display reading. A value of ‘0’ disables filtering.
to seconds
ª
«
FILTER BAND*
The digital filter will adapt to variations in the input signal. When the
variation exceeds the input filter band value, the digital filter disengages. When
the variation becomes less than the band value, the filter engages again. This
allows for a stable readout, but permits the display to settle rapidly after a large
process change. The value of the band is in display units, independent of the
Display Decimal Point position. A band setting of ‘0’ keeps the digital filter
permanently engaged.
to display units
* Factory Setting can be used without affecting basic start-up.
The remaining parameters in Module 1 do not apply to the
DP5T.
ª
«
SCALING STYLE
If Input Values and corresponding Display Values are known, the Key-in
() scaling style can be used. This allows scaling without the presence or
changing of the input signal. If Input Values have to be derived from the actual
input signal source or simulator, the Apply () scaling style must be used.
After using the Apply () scaling style, this parameter will default back to
but the scaling values will be shown from the previous applied method.
apply signal
APLY
key-in data
KEY
ª
«
INPUT VALUE FOR SCALING POINT 1
For Key-in (), enter the known first Input Value by using the arrow keys.
(The Input Range selection sets up the decimal location for the Input Value).
For Apply (), apply the input signal to the meter, adjust the signal source
externally until the desired Input Value appears. In either method, press the
PAR key to enter the value being displayed. The DSP key can be pressed
without changing the previously stored value in the style.
Note: style - Pressing the RST key will advance the display to the next
scaling display point without storing the input value.
to
ª
«
DISPLAY VALUE FOR SCALING POINT 1
to
Enter the first coordinating Display Value by using the arrow keys. This is
the same for and scaling styles. The decimal point follows the
selection.
ª
«
INPUT VALUE FOR SCALING POINT 2
to
For Key-in (), enter the known second Input Value by using the arrow
keys. For Apply (), adjust the signal source externally until the next
desired Input Value appears.

E
370 www.redlion.net
5.2 MODULE 2 - USER INPUT AND FRONT PANEL FUNCTION KEY
PARAMETERS ()
PARAMETER MENU
The user input is programmable to perform specific meter control functions.
While in the Display Mode or Program Mode, the function is executed the
instant the user input transitions to the active state.
The front panel function keys are also individually programmable to perform
specific meter control functions. While in the Display Mode, the primary
function is executed the instant the key is pressed. Holding the function key for
three seconds executes a secondary function. It is possible to program a
secondary function without a primary function.
In most cases, if the user input and/or one of the function keys is
programmed for the same function, the maintained (level trigger) actions will
be performed while the user input or at least one of the function keys are
activated. The momentary (edge trigger) actions will be performed every time
the user input or function keys transition to the active state.
Note: In the following explanations, not all selections are available for both
the user input and front panel function keys. Alternating displays are shown
with each selection. Those selections showing both displays are available for
both. If a display is not shown, it is not available for that selection.
will represent the user input. will represent all five function keys.
ª
«
ª
«
NO FUNCTION
No function is performed if activated. This is the factory setting for the user
input and all function keys. No function can be selected without affecting basic
start-up.
ª
«
PROGRAMMING MODE LOCK-OUT
Programming Mode is locked-out, as long as activated
(maintained action). A security code can be configured to
allow programming access during lock-out.
ZERO (TARE) DISPLAY
ª
«
ª
«
The Zero (Tare) Display provides a way to zero the Input Display value at
various input levels, causing future Display readings to be offset. This function
is useful in weighing applications where the container or material on the scale
should not be included in the next measurement value. When activated
(momentary action), flashes and the Display is set to zero. At the same
time, the Display value (that was on the display before the Zero Display) is
subtracted from the Display Offset Value and is automatically stored as the new
Display Offset Value (). If another Zero (tare) Display is performed, the
display will again change to zero and the Display reading will shift accordingly.
ª
«
ª
«
RELATIVE/ABSOLUTE DISPLAY
This function will switch the Input Display between Relative and Absolute.
The Relative is a net value that includes the Display Offset Value. The Input
Display will normally show the Relative unless switched by this function.
Regardless of the display selected, all meter functions continue to operate based
on relative values. The Absolute is a gross value (based on Module 1 DSP and
INP entries) without the Display Offset Value. The Absolute display is selected
as long as the user input is activated (maintained action) or at the transition of
the function key (momentary action). When the user input is released, or the
function key is pressed again, the input display switches back to Relative
display. (absolute) or (relative) is momentarily displayed at transition
to indicate which display is active.
ª
«
HOLD DISPLAY
The shown display is held but all other meter functions
continue as long as activated (maintained action).
ª
«
HOLD ALL FUNCTIONS
The meter disables processing the input and holds all
display contents as long as activated (maintained action).
ª
«
SYNCHRONIZE METER READING
The meter suspends all functions as long as activated
(maintained action). When the user input is released, the
meter synchronizes the restart of the A/D with other
processes or timing events.
ª
«
ª
«
STORE BATCH READING IN TOTALIZER
The Input Display value is one time added (batched) to the Totalizer at
transition to activate (momentary action). The Totalizer retains a running sum of
each batch operation until the Totalizer is reset. When this function is selected,
the normal operation of the Totalizer is overridden.
ª
«
SELECT TOTALIZER DISPLAY
The Totalizer display is selected as long as activated
(maintained action). When the user input is released, the
Input Display is returned. The DSP key overrides the active
user input. The Totalizer continues to function independent
of being displayed.

E
3711-717-767-6511
ª
«
PROGRAM MODE SECURITY CODE*
By entering any non-zero value, the prompt will appear when trying
to access the Program Mode. Access will only be allowed after entering a
matching security code or universal code of . With this lock-out, a user input
would not have to be configured for Program Lock-out. However, this lock-out
is overridden by an inactive user input configured for Program Lock-out.
ª
«
ª
«
ª
«
MAXIMUM DISPLAY LOCK-OUT*
MINIMUM DISPLAY LOCK-OUT*
TOTALIZER DISPLAY LOCK-OUT*
These displays can be programmed for or . When programmed for
, the display will not be shown when the DSP key is pressed regardless of
Program Lock-out status. It is suggested to lock-out the display if it is not needed.
The associated function will continue to operate even if its display is locked-out.
5.3 MODULE 3 - DISPLAY AND PROGRAM LOCK-OUT
PARAMETERS ()
PARAMETER MENU
to
ª
«
ª
«
RESET TOTALIZER
When activated (momentary action), flashes and the Totalizer resets to
zero. The Totalizer then continues to operate as it is configured. This selection
functions independent of the selected display.
ª
«
RESET AND ENABLE TOTALIZER
When activated (momentary action), flashes and
the Totalizer resets to zero. The Totalizer continues to
operate while active (maintained action). When the user
input is released, the Totalizer stops and holds its value. This
selection functions independent of the selected display.
ª
«
ENABLE TOTALIZER
The Totalizer continues to operate as long as activated
(maintained action). When the user input is released, the
Totalizer stops and holds its value. This selection functions
independent of the selected display.
ª
«
SELECT MAXIMUM DISPLAY
The Maximum display is selected as long as activated
(maintained action). When the user input is released, the
Input Display returns. The DSP key overrides the active
user input. The Maximum continues to function
independent of being displayed.
ª
«
RESET MAXIMUM
When activated (momentary action), flashes and
the Maximum resets to the present Input Display value. The
Maximum function then continues from that value. This
selection functions independent of the selected display.
ª
«
RESET, SELECT, ENABLE MAXIMUM DISPLAY
When activated (momentary action), the Maximum value
is set to the present Input Display value. Maximum continues
from that value while active (maintained action). When the
user input is released, Maximum detection stops and holds its
ª
«
SELECT MINIMUM DISPLAY
The Minimum display is selected as long as activated
(maintained action). When the user input is released, the
Input Display is returned. The DSP key overrides the active
user input. The Minimum continues to function
independent of being displayed.
RESET MINIMUM
ª
«
When activated (momentary action), flashes and
the Minimum reading is set to the present Input Display
value. The Minimum function then continues from that value.
This selection functions independent of the selected display.
ª
«
RESET, SELECT, ENABLE MINIMUM DISPLAY
When activated (momentary action), the Minimum value
is set to the present Input Display value. Minimum continues
from that value while active (maintained action). When the
user input is released, Minimum detection stops and holds
ª
«
ª
«
RESET MAXIMUM AND MINIMUM
When activated (momentary action), flashes and the Maximum and
Minimum readings are set to the present Input Display value. The Maximum and
Minimum function then continues from that value. This selection functions
independent of the selected display.
its value. This selection functions independent of the selected display. The DSP
key overrides the active user input display but not the Minimum function.
value. This selection functions independent of the selected display. The DSP key
overrides the active user input display but not the Maximum function.
* Factory Setting can be used without affecting basic start-up.

E
372 www.redlion.net
ª
«
MAX CAPTURE DELAY TIME*
When the Input Display is above the present MAX value for the entered
delay time, the meter will capture that display value as the new MAX reading.
A delay time helps to avoid false captures of sudden short spikes.
ª
«
MIN CAPTURE DELAY TIME*
When the Input Display is below the present MIN value for the entered delay
time, the meter will capture that display value as the new MIN reading. A delay
time helps to avoid false captures of sudden short spikes.
ª
«
UNITS LABEL BACKLIGHT*
The Units Label Kit Accessory contains a sheet of custom unit overlays
which can be installed in to the meter’s bezel display assembly. The backlight
for these custom units is activated by this parameter.
ª
«
DISPLAY OFFSET VALUE*
Unless a Zero Display was performed or an offset from Module 1 scaling is
desired, this parameter can be skipped. The Display Offset Value is the
difference from the Absolute (gross) Display value to the Relative (net) Display
value for the same input level. The meter will automatically update this Display
Offset Value after each Zero Display. The Display Offset Value can be directly
keyed-in to intentionally add or remove display offset. See Relative / Absolute
Display and Zero Display explanations in Module 2.
ª
«
DISPLAY UPDATE RATE*
This parameter determines the rate of display update. When set to 10
updates/second, the internal re-zero compensation is disabled, allowing for the
fastest possible output response.
5.4 MODULE 4 - SECONDARY FUNCTION PARAMETERS ()
PARAMETER MENU
to sec.
to sec.
to
updates/sec.
ª
«
DP5T: ICE POINT COMPENSATION*
This parameter turns the internal ice point compensation on or off. Normally,
the ice point compensation is on. If using external compensation, set this
parameter to off. In this case, use copper leads from the external compensation
point to the meter.
This parameter does not apply for the DP5T.
* Factory Setting can be used without affecting basic start-up.

E
3731-717-767-6511
* Factory Setting can be used without affecting basic start-up.
5.5 MODULE 5 - TOTALIZER (INTEGRATOR) PARAMETERS ()
PARAMETER MENU
ª
«
TOTALIZER DECIMAL POINT*
For most applications, this matches the Input Display Decimal Point
(). If a different location is desired, refer to Totalizer Scale Factor.
0.000 0.00000.000.00
ª
«
TOTALIZER TIME BASE
This is the time base used in Totalizer accumulations. If the Totalizer is being
accumulated through a user input programmed for Batch, then this parameter
does not apply.
ª
«
TOTALIZER SCALE FACTOR*
For most applications, the Totalizer reflects the same decimal point location
and engineering units as the Input Display. In these cases, the Totalizer Scale
Factor is 1.000. The Totalizer Scale Factor can be used to scale the Totalizer to
a different value than the Input Display. Common possibilities are:
1. Changing decimal point location (example tenths to whole)
2. Changing engineering units (example inches to meters)
3. Changing both decimal point location and engineering units.
4. Average over a controlled time frame.
Details on calculating the scale factor are shown later.
If the Totalizer is being accumulated through a user input programmed for
Batch, then this parameter does not apply.
ª
«
TOTALIZER LOW CUT VALUE*
to
to
A low cut value disables Totalizer when the Input Display value falls below
the value programmed.
ª
«
TOTALIZER POWER UP RESET*
Reset buffer
Do not reset buffer
rSt
NO
The Totalizer can be reset to zero on each meter power-up by setting this
parameter to reset.
- seconds (÷ 1)
- days (÷ 86400)
TOTALIZER HIGH ORDER DISPLAY
When the total exceeds 5 digits, the front panel annunciator TOT flashes. In
this case, the meter continues to totalize up to a 9 digit value. The high order 4
digits and the low order 5 digits of the total are displayed alternately. The letter
“” denotes the high order display.
TOTALIZER BATCHING
The Totalizer Time Base and scale factor are overridden when a user input or
function key is programmed for store batch (). In this mode, when the user
input or function key is activated, the Input Display reading is one time added
to the Totalizer (batch). The Totalizer retains a running sum of each batch
operation until the Totalizer is reset. This is useful in weighing operations, when
the value to be added is not based on time but after a filling event.
TOTALIZER USING TIME BASE
Totalizer accumulates as defined by:
Input Display x Totalizer Scale Factor
Totalizer Time Base
Where:
Input Display - the present input reading
Totalizer Scale Factor - 0.001 to 65.000
Totalizer Time Base - (the division factor of )
Example: The input reading is at an average of 10.0°C per hour. The Totalizer
is used to verify this average reading in a controlled time frame of 4 hours.
Because the Input Display and Totalizer are both in tenths of °C, the Totalizer
Scale Factor is 1. However, the Totalizer Time Base is hours (3600) divided
by the 4 hours in the controlled time frame to yield a Totalizer Scale Factor
of 0.250. By placing these values in the equation, the Totalizer will
accumulate every second as follows:
10.0 x 0.250 = 0.00069 accumulates each second
3600
This results in:
0.04167 accumulates each minute
2.5 accumulates each hour
10.0 reached at the end of 4 hours
TOTALIZER SCALE FACTOR CALCULATION EXAMPLES
1. When changing the Totalizer Decimal Point () location from the Input
Display Decimal Point (), the required Totalizer Scale Factor is
multiplied by a power of ten.
Example: Input () = 0.0 Input () = 0.00
(x = Totalizer display is round by tens or hundreds)
2. When changing the Totalizer engineering units, the Totalizer Scale Factor is
the known conversion multiplier from Input Display units to Totalizer units.
Example: If Input Display is feet and the Totalizer needs to be in yards, the
conversion multiplier from feet to yards is 0.333. Enter 0.333 as the
Totalizer scale factor.
3. When changing both the Totalizer engineering units and Totalizer Decimal
Point the two calculations are multiplied together. Example: Input Display =
feet in tenths (0.0) with Totalizer = whole yards (0), the scale factor would
be 0.033.
4. To obtain an average reading within a controlled time frame, the selected
Totalizer Time Base is divided by the given time period expressed in the
same timing units.
Example: Average temperature per hour in a 4 hour period, the scale factor
would be 0.250. To achieve a controlled time frame, connect an external
timer to a user input programmed for . The timer will control the
start (reset) and the stopping (hold) of the totalizer.
- minutes (÷ 60)
- hours (÷ 3600)
The totalizer accumulates (integrates) the Input Display value using one of
two modes. The first is using a time base. This can be used to compute a time-
temperature product. The second is through a user input or function key
programmed for Batch (one time add on demand). This can be used to provide
a readout of temperature integration, useful in curing and sterilization
applications. If the Totalizer is not needed, its display can be locked-out and this
module can be skipped during programming.
.001x10
.010
.10.0
10.00
100.000
Scale
Factor
Totalizer
Scale
Factor
0.00 10
0.0 1
0.1
x10 .01
x100 .001
Totalizer

E
374 www.redlion.net
5.9 MODULE 9 - FACTORY SERVICE OPERATIONS ()
PARAMETER MENU
The meter has been fully calibrated at the factory.
Scaling to convert the input signal to a desired display
value is performed in Module 1. If the meter appears to be
indicating incorrectly or inaccurately, refer to
Troubleshooting before attempting to calibrate the meter.
When recalibration is required (generally every 2 years), it should only be
performed by qualified technicians using appropriate equipment. Calibration
does not change any user programmed parameters. However, it may affect the
accuracy of the input signal values previously stored using the Apply ()
Scaling Style.
Calibration may be aborted by disconnecting power to the meter before
exiting Module 9. In this case, the existing calibration settings remain in effect.
CALIBRATION
ª
«
Before starting, verify that the Input Ranger Jumper is set for the range to be
calibrated. Also verify that the precision signal source is connected and ready.
Allow a 30 minute warm-up period before calibrating the meter. and PAR
can be chosen to exit the calibration mode without any changes taking place.
Then perform the following procedure:
1. Use the arrow keys to display and press PAR.
2. Choose the range to be calibrated by using the arrow keys and press PAR.
3. When the zero range limit appears on the display, apply the appropriate:
- Voltage ranges: dead short applied
- Current ranges: open circuit
4. Press PAR and will appear on the display for about 10 seconds.
5. When the top range limit appears on the display, apply the appropriate:
- Voltage ranges: top range value applied (The 300 V range is the exception.
It is calibrated with a 100 V signal.)
- Current ranges: top range value
6. Press PAR and will appear on the display for about 10 seconds.
7. When appears, press PAR twice.
8. If the meter is not field scaled, then the input display should match the value
of the input signal.
9. Repeat the above procedure for each input range to be calibrated.
WARNING: Calibration of this meter requires a signal source with
an accuracy of 0.01% or better.
WARNING: Calibration of this meter requires a signal source with an
accuracy of 0.01% or better.
DP5D - Input Calibration
DP5P - Input Calibration
Before starting, verify that the precision signal source is connected to the
correct terminals and ready. Allow a 30 minute warm-up period before
calibrating the meter. and PAR can be chosen to exit the calibration mode
without any changes taking place.
Then perform the following procedure:
1. Use the arrow keys to display and press PAR.
2. Choose the range to be calibrated by using the arrow keys and press PAR.
3. When the zero range limit appears on the display, apply the appropriate:
- Voltage range: dead short applied
- Current range: open circuit
4. Press PAR and will appear on the display for about 10 seconds.
5. When the top range limit appears on the display, apply the appropriate:
- Voltage range: 10 VDC
- Current range: 20 mADC
6. Press PAR and will appear on the display for about 10 seconds.
7. When appears, press PAR twice.
8. If the meter is not field scaled, then the input display should match the value
of the input signal.
9. Repeat the above procedure for each input range to be calibrated.
100 OHM RTD Range Calibration
1. Set the Input Range Jumper to 100 ohm.
2. Use the arrow keys to display and press PAR. Then choose
and press PAR.
3. At , apply a direct short to input terminals 3, 4 and 5 using a three wire
link. Wait 10 seconds, then press PAR.
4. At , apply a precision resistance of 300 ohms (with an accuracy of
0.01% or better) using a three wire link, to terminals 3, 4 and 5. Wait 10
seconds, press PAR.
5. Connect the RTD, return to the Display Mode and verify the input reading
(with 0 Display Offset) is correct. If not correct repeat calibration.
DP5T - Input Calibration
Warning: Calibration of this meter requires precision instrumentation
operated by qualified technicians. It is recommended that a
calibration service calibrates the meter.
Before selecting any of the calibration procedures, the input to the meter
must be at 0 mV or 0 ohms. Set the digital filer in Module 1 to 1 second. Allow
a 30 minute warm-up period before calibrating the meter. The and PAR can
be chosen to exit calibration mode without any changes taking place.
10 OHM RTD Range Calibration
1. Set the Input Range Jumper to 10 ohm.
2. Use the arrow keys to display and press PAR. Then choose
and press PAR.
3. At , apply a direct short to input terminals 3, 4 and 5 using a three wire
link. Wait 10 seconds, then press PAR.
4. At , apply a precision resistance of 15 ohms (with an accuracy of 0.01%
or better) using a three wire link, to input terminals 3, 4 and 5. Wait 10
seconds, then press PAR.
5. Connect the RTD, return to the Display Mode and verify the input reading
(with 0 Display Offset) is correct. If not correct repeat calibration.
ª
«
RESTORE FACTORY DEFAULTS
Use the arrow keys to display and press PAR.
The meter will display and then return to .
Press DSP key to return to Display Mode. This will
overwrite all user settings with the factory settings.

E
3751-717-767-6511
TROUBLESHOOTING
CHECK: Active (lock-out) user input
ENTER: Security code requested
PRESS: Reset KEY (If cannot clear contact factory.)ERROR CODE (Err 1-4)
INCREASE: Module 1 filtering, rounding, input range
CHECK: Wiring is per EMC installation guidelines
JITTERY DISPLAY
CHECK: Module 1 programming, Input Range Jumper position, input connections, input signal level“ULUL” in DISPLAY (SIGNAL LOW)
CHECK: Module 1 programming, Input Range Jumper position, input connections, input signal level“OLOL” in DISPLAY (SIGNAL HIGH)
CHECK: Module 1 programming, Input Range Jumper position, input connections, input signal level,
Module 4 Display Offset is zero, press DSP for Input Display
PERFORM: Module 9 Calibration (If the above does not correct the problem.)
INCORRECT INPUT DISPLAY VALUE
CHECK: Module 3 programmingMAX, MIN, TOT LOCKED-OUT
PROGRAM LOCKED-OUT
CHECK: Power level, power connectionsNO DISPLAY
REMEDIESPROBLEM
For further assistance, contact technical support at the appropriate company numbers listed.
THERMOCOUPLE Range Calibration
1. Use the arrow keys to display and press PAR. Then choose and
press PAR.
2. At , apply a dead short or set calibrator to zero to input terminals 4 and
5. Wait 10 seconds, then press PAR.
3. At , apply 50.000 mV input signal (with an accuracy of 0.01% or
better) to input terminals 4 and 5. Wait 10 seconds, then press PAR.
4. Return to the Display Mode.
5. Continue with Ice Point Calibration.
ICE POINT Calibration
1. The ambient temperature must be within 20°C to 30°C.
2. Connect a thermocouple (types T, E, J, K, or N only) with an accuracy of 1°C
or better to the meter.
3. Verify the readout Display Offset is 0, Temperature Scale is °C, Display
Resolution is 0.0, and the Input Range is set for the connected thermocouple.
4. Place the thermocouple in close thermal contact to a reference thermometer
probe. (Use a reference thermometer with an accuracy of 0.25°C or better.)
The two probes should be shielded from air movement and allowed sufficient
time to equalize in temperature. (A calibration bath could be used in place of
the thermometer.)
5. In the Normal Display mode, compare the readouts.
6. If a difference exists then continue with the calibration.
7. Enter Module 9, use the arrow keys to display and press PAR. Then
choose and press PAR.
8. Calculate a new Ice Point value using: existing Ice Point value + (reference
temperature - Display Mode reading). All values are based on °C.
9. Enter the new Ice Point value.
10. Return to the Display Mode and verify the input reading (with 0 Display
Offset) is correct. If not correct repeat steps 8 through 10.

E
376 www.redlion.net
PARAMETER VALUE CHART Programmer ________________ Date ________
DP5 Model Number _______ Meter# _____________ Security Code __________
1-INP Signal Input Parameters
DP5T: TEMPERATURE SCALE
DISPLAY PARAMETER FACTORY
SETTING
SCALE
tyPE
rANGE
DP5T: INPUT TYPE
INPUT RANGE
°F
tc-
dECPt * DISPLAY RESOLUTION 0
OFFSt
USER SETTING
round
DP5T: DISPLAY OFFSET
DISPLAY ROUNDING INCREMENT
0
1
FILtr FILTER SETTING 1.0
bANd 10
INP 1
StYLE
* INPUT VALUE 1
SCALING STYLE - NOT DP5T
0.000
KEY
dSP 1 * DISPLAY VALUE 1 0
INP 2 * INPUT VALUE 2 1.000
dSP 2 * DISPLAY VALUE 2 1000
FILTER ENABLE BAND
* Decimal point location is model dependent.
2-FNC User Input and Function Key Parameters
DISPLAY PARAMETER USER SETTING
FACTORY
SETTING
USr-1 USER INPUT 1 NO
F1 FUNCTION KEY 1 NO
F2 FUNCTION KEY 2 NO
rSt RESET KEY NO
Sc-F1 2nd FUNCTION KEY 1 NO
Sc-F2 2nd FUNCTION KEY 2 NO
3-LOC Display and Program Lockout Parameters
TOTAL DISPLAY LOCKOUT
MIN DISPLAY LOCKOUT
0
SECURITY CODE
CodE
LOCtOt
LOC
LOC
MAX DISPLAY LOCKOUT
LO
HI
FACTORY
SETTING USER SETTINGPARAMETERDISPLAY
4-SEC Secondary Function Parameters
FACTORY
SETTING USER SETTINGPARAMETERDISPLAY
0.00
OFF
ON
DISPLAY OFFSET - NOT DP5T
UNITS LABEL BACKLIGHT - DP5T ON
OFFSt
b-LIt
ICE
2
DISPLAY UPDATE TIME
dSP-t
0.1
MIN CAPTURE DELAY TIME
LO-t
0.1
MAX CAPTURE DELAY TIME
HI-t
DP5T: ICE POINT COMPENSATION
5-tOt Totalizer (Integrator) Parameters
DISPLAY PARAMETER FACTORY
SETTING USER SETTING
dECPt * TOTALIZER DECIMAL POINT 0
tbASE TOTALIZER TIME BASE _IN
SCFAC TOTALIZER SCALE FACTOR 1.000
Locut * TOTALIZER LOW CUT VALUE -19999
P-UP TOTALIZER POWER-UP RESET NO

E
3771-717-767-6511
DP5T
ONLY
DP5 PROGRAMMING QUICK OVERVIEW

E
378 www.redlion.net
zPROCESS, VOLTAGE, CURRENT, TEMPERATURE, AND STRAIN
GAGE INPUTS
z5-DIGIT 0.56" RED SUNLIGHT READABLE DISPLAY
zVARIABLE INTENSITY DISPLAY
z16 POINT SCALING FOR NON-LINEAR PROCESSES
zPROGRAMMABLE FUNCTION KEYS/USER INPUTS
z9 DIGIT TOTALIZER (INTEGRATOR) WITH BATCHING
zOPTIONAL CUSTOM UNITS OVERLAY W/BACKLIGHT
zFOUR SETPOINT ALARM OUTPUTS (W/OPTION CARD)
zCOMMUNICATION AND BUS CAPABILITIES (W/OPTION CARD)
zRETRANSMITTED ANALOG OUTPUT (W/OPTION CARD)
zCRIMSON PROGRAMMING SOFTWARE
zNEMA 4X/IP65 SEALED FRONT BEZEL
GENERAL DESCRIPTION
The PAX®Analog Panel Meters offer many features and performance
capabilities to suit a wide range of industrial applications. Available in five
different models to handle various analog inputs, including DC Voltage/Current,
AC Voltage/Current, Process, Temperature, and Strain Gage Inputs. Refer to
pages 4 through 6 for the details on the specific models. The optional plug-in
output cards allow the opportunity to configure the meter for present
applications, while providing easy upgrades for future needs.
The meters employ a bright 0.56" LED display. The unit is available with a
red sunlight readable or a standard green LED. The intensity of display can be
adjusted from dark room applications up to sunlight readable, making it ideal
for viewing in bright light applications.
The meters provide a MAX and MIN reading memory with programmable
capture time. The capture time is used to prevent detection of false max or min
readings which may occur during start-up or unusual process events.
The signal totalizer (integrator) can be used to compute a time-input product.
This can be used to provide a readout of totalized flow, calculate service
intervals of motors or pumps, etc. The totalizer can also accumulate batch
weighing operations.
The meters have four setpoint outputs, implemented on Plug-in option cards.
The Plug-in cards provide dual FORM-C relays (5A), quad FORM-A (3A), or
either quad sinking or quad sourcing open collector logic outputs. The setpoint
alarms can be configured to suit a variety of control and alarm requirements.
Communication and Bus Capabilities are also available as option cards.
These include RS232, RS485, Modbus, DeviceNet, and Profibus-DP. Readout
values and setpoint alarm values can be controlled through the bus.
Additionally, the meters have a feature that allows a remote computer to directly
control the outputs of the meter. With an RS232 or RS485 card installed, it is
possible to configure the meter using a Windows®based program. The
configuration data can be saved to a file for later recall.
A linear DC output signal is available as an optional Plug-in card. The card
provides either 20 mA or 10 V signals. The output can be scaled independent of
the input range and can track either the input, totalizer, max or min readings.
Once the meters have been initially configured, the parameter list may be
locked out from further modification in its entirety or only the setpoint values
can be made accessible.
The meters have been specifically designed for harsh industrial environments.
With NEMA 4X/IP65 sealed bezel and extensive testing of noise effects to CE
requirements, the meter provides a tough yet reliable application solution.
SAFETY SUMMARY
All safety related regulations, local codes and instructions that appear in this
literature or on equipment must be observed to ensure personal safety and to
prevent damage to either the instrument or equipment connected to it. If
equipment is used in a manner not specified by the manufacturer, the protection
provided by the equipment may be impaired.
Do not use this unit to directly command motors, valves, or other actuators
not equipped with safeguards. To do so can be potentially harmful to persons or
equipment in the event of a fault to the unit.
MODEL PAX – 1/8 DIN ANALOG INPUT PANEL METERS
DIMENSIONS In inches (mm) Note: Recommended minimum clearance (behind the panel) for mounting clip installation is
2.1" (53.4) H x 5.0" (127) W.
CAUTION: Risk of Danger
Read complete instructions prior to
installation and operation of the unit.
CAUTION: Risk of electric shock.
C
C
US LISTED
US LISTED
UL
R
IND. CONT. EQ.
51EB
MODELS: VOLT/CURRENT (PAXD) PROCESS (PAXP) AC TRUE RMS
VOLT AND CURRENT (PAXH) STRAIN GAGE (PAXS)
THERMOCOUPLE/RTD (PAXT)

E
3791-717-767-6511
Ordering Information . . . . . . . . . . . . . . . . . . 2
General Meter Specifications . . . . . . . . . . . . 3
Universal DC Input Panel Meter . . . . . . . . . . 4
Process Input Panel Meter . . . . . . . . . . . . . . 4
AC True RMS Voltage and Current Meter . . . 5
Strain Gage Input Panel Meter . . . . . . . . . . . 5
Thermocouple and RTD Input Meter . . . . . . 6
Optional Plug-In Cards . . . . . . . . . . . . . . . . . 7
Installing the Meter . . . . . . . . . . . . . . . . . . . . 8
Setting the Jumpers . . . . . . . . . . . . . . . . . . . 8
Wiring the Meter . . . . . . . . . . . . . . . . . . . . . 10
Reviewing the Front Buttons and Display . . 13
Programming the Meter . . . . . . . . . . . . . . . 14
Factory Service Operations . . . . . . . . . . . . 23
Parameter Value Chart . . . . . . . . . . . . . . . . 25
Programming Overview . . . . . . . . . . . . . . . 27
TABLE OFCONTENTS
ORDERING INFORMATION
PAX 00
D - DC Volt/ Current Input
P - Process Input
H - AC True RMS Volt/Current Input *
S - Strain Gage/Bridge Input
T - Thermocouple and RTD Input
0 - Red, Sunlight Readable Display
1 - Green Display
0 - 85 to 250 VAC
1 - 11 to 36 VDC, 24 VAC
* PAXH is only available with 85-250 VAC power supply.
Meter Part Numbers
Option Card and Accessories Part Numbers
SFCRD200Crimson 2 PC Configuration Software for Windows 98, ME, 2000 and XPSFCRD*
Accessories PAXLBK10Units Label Kit Accessory (Not required for PAXT)PAXLBK
PAXCDC4C
PAXCDC40
PAXCDC30
Extended Modbus Communications Card with Dual RJ11 Connector
Modbus Communications Card
DeviceNet Communications Card
Optional
Plug-In
Cards
PAXCDC50
PAXCDL10
Profibus-DP Communications Card
Analog Output CardPAXCDL
PAXCDC2C
PAXCDC20
Extended RS232 Serial Communications Output Card with 9 Pin D Connector
RS232 Serial Communications Output Card with Terminal Block
PAXCDC1C
PAXCDC10
PAXCDC
PAXCDS40Quad Setpoint Sourcing Open Collector Output Card
PAXCDS30Quad Setpoint Sinking Open Collector Output Card
PAXCDS20Quad Setpoint Relay Output Card
TYPE
PAXCDS10Dual Setpoint Relay Output Card
PAXCDS
PART NUMBERSDESCRIPTIONMODEL NO.
*Crimson software is available for download from http://www.redlion.net/
RS485 Serial Communications Output Card with Terminal Block
Extended RS485 Serial Communications Output Card with Dual RJ11 Connector

E
380 www.redlion.net
GENERAL METER SPECIFICATIONS
1. DISPLAY: 5 digit, 0.56" (14.2 mm) red sunlight readable or standard green
LEDs, (-19999 to 99999)
2. POWER:
AC Versions:
AC Power: 85 to 250 VAC, 50/60 Hz, 15 VA
Isolation: 2300 Vrms for 1 min. to all inputs and outputs.
DC Versions (Not available on PAXH):
DC Power: 11 to 36 VDC, 11 W
(derate operating temperature to 40° C if operating <15 VDC and three
plug-in option cards are installed)
AC Power: 24 VAC, ± 10%, 50/60 Hz, 15 VA
Isolation: 500 Vrms for 1 min. to all inputs and outputs (50 V working).
3. ANNUNCIATORS:
MAX - maximum readout selected
MIN - minimum readout selected
TOT - totalizer readout selected, flashes when total overflows
SP1 - setpoint alarm 1 is active
SP2 - setpoint alarm 2 is active
SP3 - setpoint alarm 3 is active
SP4 - setpoint alarm 4 is active
Units Label - optional units label backlight
4. KEYPAD: 3 programmable function keys, 5 keys total
5. A/D CONVERTER: 16 bit resolution
6. UPDATE RATES:
A/D conversion rate: 20 readings/sec.
Step response: 200 msec. max. to within 99% of final readout value
(digital filter and internal zero correction disabled)
700 msec. max. (digital filter disabled, internal zero correction enabled)
PAXH Only: 1 sec max. to within 99% of final readout value (digital filter
disabled)
Display update rate: 1 to 20 updates/sec.
Setpoint output on/off delay time: 0 to 3275 sec.
Analog output update rate: 0 to 10 sec
Max./Min. capture delay time: 0 to 3275 sec.
7. DISPLAY MESSAGES:
“OLOL” - Appears when measurement exceeds + signal range.
“ULUL” - Appears when measurement exceeds - signal range
PAXT: “SHrt” - Appears when shorted sensor is detected. (RTD only)
PAXT: “OPEN” - Appears when open sensor is detected.
“. . . .” - Appears when display values exceed + display range.
“- . . .” - Appears when display values exceed - display range.
“E . . .” - Appears when Totalizer exceeds 9 digits.
“h . . .” - Denotes the high order display of the Totalizer.
8. INPUT CAPABILITIES: See specific product specifications, pages 4-6
9. EXCITATION POWER: See specific product specifications, pages 4-6
10. LOW FREQUENCY NOISE REJECTION: (Does not apply to PAXH)
Normal Mode: > 60 dB @ 50 or 60 Hz ±1%, digital filter off
Common Mode: >100 dB, DC to 120 Hz
11. USER INPUTS: Three programmable user inputs
Max. Continuous Input: 30 VDC
Isolation To Sensor Input Common: Not isolated. (Not PAXH)
PAXH: Isolation to Sensor Input Common: 1400 Vrms for 1 min.
Working Voltage: 125 V
Response Time: 50 msec. max.
Logic State: Jumper selectable for sink/source logic
12. TOTALIZER:
Function:
Time Base: second, minute, hour, or day
Batch: Can accumulate (gate) input display from a user input
Time Accuracy: 0.01% typical
Decimal Point: 0 to 0.0000
Scale Factor: 0.001 to 65.000
Low Signal Cut-out: -19,999 to 99,999
Total: 9 digits, display alternates between high order and low order readouts
13. CUSTOM LINEARIZATION:
Data Point Pairs: Selectable from 2 to 16
Display Range: -19,999 to 99,999
Decimal Point: 0 to 0.0000
PAXT: Ice Point Compensation: user value (0.00 to 650.00 μV/°C)
14. MEMORY: Nonvolatile E2PROM retains all programmable parameters
and display values.
15. ENVIRONMENTAL CONDITIONS:
Operating Temperature Range: 0 to 50°C (0 to 45°C with all three plug-in
cards installed)
Vibration According to IEC 68-2-6: Operational 5 to 150 Hz, in X, Y, Z
direction for 1.5 hours, 2g’s.
Shock According to IEC 68-2-27: Operational 25 g (10g relay), 11 msec in 3
directions.
Storage Temperature Range: -40 to 60°C
Operating and Storage Humidity: 0 to 85% max. RH non-condensing
Altitude: Up to 2000 meters
16. CERTIFICATIONS AND COMPLIANCES:
SAFETY
UL Recognized Component, File #E179259, UL61010A-1, CSA C22.2
No. 61010-1
PAXT Only: File # E156876, UL873, CSA C22.2 No. 24
Recognized to U.S. and Canadian requirements under the Component
Recognition Program of Underwriters Laboratories, Inc.
UL Listed, File # E137808, UL508, CSA C22.2 No. 14-M95
LISTED by Und. Lab. Inc. to U.S. and Canadian safety standards
Type 4X Enclosure rating (Face only), UL50
IECEE CB Scheme Test Certificate #US/8843A/UL
CB Scheme Test Report #04ME11209-20041018
Issued by Underwriters Laboratories, Inc.
IEC 61010-1, EN 61010-1: Safety requirements for electrical
equipment for measurement, control, and laboratory use, Part I
IP65 Enclosure rating (Face only), IEC 529
IP20 Enclosure rating (Rear of unit), IEC 529
ELECTROMAGNETIC COMPATIBILITY
Notes:
1. Self-recoverable loss of performance during EMI disturbance at 10 V/m:
Measurement input and/or analog output signal may deviate during
EMI disturbance.
For operation without loss of performance:
Unit is mounted in a metal enclosure (Buckeye SM7013-0 or equivalent)
I/O and power cables are routed in metal conduit connected to earth
ground.
Refer to EMC Installation Guidelines section of the bulletin for additional
information.
17. CONNECTIONS: High compression cage-clamp terminal block
Wire Strip Length: 0.3" (7.5 mm)
Wire Gage: 30-14 AWG copper wire
Torque: 4.5 inch-lbs (0.51 N-m) max.
18. CONSTRUCTION: This unit is rated for NEMA 4X/IP65 outdoor use.
IP20 Touch safe. Installation Category II, Pollution Degree 2. One piece
bezel/case. Flame resistant. Synthetic rubber keypad. Panel gasket and
mounting clip included.
19. WEIGHT: 10.4 oz. (295 g)
VIN > 3.6 VDC VIN < 0.9 VDC
Inactive
VIN < 0.9 VDC VIN > 3.6 VDC
Active
SINKING INPUTS
22 KΩΩpull-up to +5 V
SOURCING INPUTS
22 KΩΩpull-down
INPUT STATE
Power mains class A
Enclosure class AEN 55011RF interference
Emissions to EN 50081-2
150 KHz - 80 MHz
Level 3; 10 V/rms EN 61000-4-6RF conducted interference
Level 3; 2 Kv power
Level 4; 2 Kv I/OEN 61000-4-4Fast transients (burst)
80 MHz - 1 GHz
Level 3; 10 V/m 1
EN 61000-4-3Electromagnetic RF fields
Level 3; 8 Kv air
Level 2; 4 Kv contactEN 61000-4-2Electrostatic discharge
200 Hz, 50% duty cycle
900 MHz ±5 MHz
Immunity to EN 50082-2
Level 3; 10 V/mENV 50204Simulation of cordless telephones

E
3811-717-767-6511
MODEL PAXD - UNIVERSAL DC INPUT
MODEL PAXP - PROCESS INPUT
*After 20 minute warm-up. Accuracy is specified in two ways:
Accuracy over an 18 to 28°C and 10 to 75% RH environment; and
accuracy over a 0 to 50°C and 0 to 85% RH (non-condensing
environment). Accuracy over the 0 to 50°C range includes the
temperature coefficient effect of the meter.
EXCITATION POWER:
Transmitter Power: 24 VDC, ±5%, regulated, 50 mA max.
Reference Voltage: 2 VDC, ±2%
Compliance: 1 kohm load min. (2 mA max.)
Temperature coefficient: 40 ppm/°C max.
Reference Current: 1.75 mADC, ±2%
Compliance: 10 kohm load max.
Temperature coefficient: 40 ppm/°C max.
zFOUR VOLTAGE RANGES (300 VDC Max)
zFIVE CURRENT RANGES (2A DC Max)
zTHREE RESISTANCE RANGES (10K Ohm Max)
zSELECTABLE 24 V, 2 V, 1.75 mA EXCITATION
zDUAL RANGE INPUT (20 mA or 10 VDC)
z24 VDC TRANSMITTER POWER
PAXD SPECIFICATIONS
INPUT RANGES:
PAXP SPECIFICATIONS
SENSOR INPUTS:
INPUT
RANGE
ACCURACY*
(18 to 28°C)
ACCURACY*
(0 to 50°C)
IMPEDANCE/
COMPLIANCE
MAX
CONTINUOUS
OVERLOAD
RESOLUTION
±200 mVDC 0.03% of reading
+30 μV
0.12% of reading
+40 μV1.066 Mohm 100 V 10 μV
±2 VDC 0.03% of reading
+0.3 mV
0.12% of reading
+0.4 mV 1.066 Mohm 300 V 0.1 mV
±20 VDC 0.03% of reading
+3 mV
0.12% of reading
+4 mV 1.066 Mohm 300 V 1 mV
±300 VDC 0.05% of reading
+30 mV
0.15% of reading
+40 mV 1.066 Mohm 300 V 10 mV
±200 μADC 0.03% of reading
+0.03 μA
0.12% of reading
+0.04μA1.11 Kohm 15 mA 10 nA
±2 mADC 0.03% of reading
+0.3 μA
0.12% of reading
+0.4 μA111 ohm 50 mA 0.1 μA
±20 mADC 0.03% of reading
+3μA
0.12% of reading
+4 μA11.1 ohm 150 mA 1 μA
±200 mADC 0.05% of reading
+30 μA
0.15% of reading
+40 μA1.1 ohm 500 mA 10 μA
±2 ADC 0.5% of reading
+0.3 mA
0.7% of reading
+0.4 mA 0.1 ohm 3 A 0.1 mA
100 ohm 0.05% of reading
+30 Mohm
0.2% of reading
+40 Mohm 0.175 V 30 V 0.01 ohm
1000 ohm 0.05% of reading
+0.3 ohm
0.2% of reading
+0.4 ohm 1.75 V 30 V 0.1 ohm
10 Kohm 0.05% of reading
+1 ohm
0.2% of reading
+1.5 ohm 17.5 V 30 V 1 ohm
*After 20 minute warm-up. Accuracy is specified in two ways: Accuracy over an 18
to 28°C and 10 to 75% RH environment; and accuracy over a 0 to 50°C and 0 to
85%RH (non-condensing environment). Accuracy over the 0 to 50°C range
includes the temperature coefficient effect of the meter.
EXCITATION POWER:
Transmitter Power: 24 VDC, ±5%, regulated, 50 mA max.
INPUT
(RANGE)
ACCURACY*
(18 to 28°C)
ACCURACY*
(0 to 50°C)
IMPEDANCE/
COMPLIANCE
MAX
CONTINUOUS
OVERLOAD
DISPLAY
RESOLUTION
20 mA
(-2 to 26 mA)
0.03% of
reading +2 μA
0.12% of
reading +3 μA20 ohm 150 mA 1 μA
10 VDC
(-1 to 13 VDC)
0.03% of
reading +2 mV
0.12% of
reading +3 mV 500 Kohm 300 V 1 mV

E
382 www.redlion.net
MODEL PAXH - AC TRUE RMS VOLT AND CURRENT
zFOUR VOLTAGE RANGES (300 VAC Max)
zFIVE CURRENT RANGES (5 A Max)
zACCEPTS AC OR DC COUPLED INPUTS
zTHREE WAY ISOLATION: POWER, INPUT AND OUTPUTS
MODEL PAXS - STRAIN GAGE INPUT
zLOAD CELL, PRESSURE AND TORQUE BRIDGE INPUTS
zDUAL RANGE INPUT: ±24 mV OR ±240 mV
zSELECTABLE 5 VDC OR 10 VDC BRIDGE EXCITATION
zPROGRAMMABLE AUTO-ZERO TRACKING
PAXS SPECIFICATIONS
SENSOR INPUTS:
PAXH SPECIFICATIONS
INPUT RANGES:
Isolation To Option Card Commons and User Input Commons: 125 Vrms
Isolation To AC Power Terminals: 250 Vrms
*Conditions for accuracy specification:
- 20 minutes warmup
- 18-28°C temperature range, 10-75% RH non-condensing
- 50 Hz - 400 Hz sine wave input
- 1% to 100% of range
- Add 0.1% reading + 20 counts error over 0-50°C range
- Add 0.2% reading + 10 counts error for crest factors up to 3, add 1% reading up to 5
- Add 0.5% reading + 10 counts of DC component
- Add 1% reading + 20 counts error over 20 Hz to 10 KHz range
** Non-repetitive surge rating: 15 A for 5 seconds
*** Inputs are direct coupled to the input divider and shunts. Input signals with
high DC component levels may reduce the usable range.
MAX CREST FACTOR (Vp/VRMS): 5 @ Full Scale Input
INPUT COUPLING: AC or AC and DC
INPUT CAPACITANCE: 10 pF
COMMON MODE VOLTAGE: 125 VAC working
COMMON MODE REJECTION: (DC to 60 Hz) 100 dB
INPUT
RANGE ACCURACY* MAX DC
BLOCKING
IMPEDANCE
(60 Hz)
MAX
CONTINUOUS
OVERLOAD
RESOLUTION
2 mA 0.1% of reading
+2 μA±50 mA
111 ohm 50 mA 0.1 μA
20 mA 0.1% of reading
+20 μA±150 mA
11.1 ohm 150 mA 1 μA
200 mA 0.1% of reading
+0.2 mA ±500 mA
1.1 ohm 500 mA 10 μA
5 A 0.5% of reading
+5 mA ±7 A***
0.02 ohm 7 A** 1 mA
200 mV 0.1% of reading
+0.4 mV ±10 V
686 Kohm 30 V 0.01 mV
2 V 0.1% of reading
+2 mV ±50 V
686 Kohm 30 V 0.1 mV
20 V 0.1% of reading
+20 mV ±300 V
686 Kohm 300 V 1 mV
300 V 0.2% of reading
+0.3 V ±300 V***
686 Kohm 300 V 0.1 V
200 μA0.1% of reading
+0.4 μA±15 mA
1.11 Kohm 15 mA 0.01 μA
CONNECTION TYPE: 4-wire bridge (differential)
2-wire (single-ended)
COMMON MODE RANGE (w.r.t. input common): 0 to +5 VDC
Rejection: 80 dB (DC to 120 Hz)
BRIDGE EXCITATION :
Jumper Selectable: 5 VDC @ 65 mA max., ±2%
10 VDC @ 125 mA max., ±2%
Temperature coefficient (ratio metric): 20 ppm/°C max.
INPUT RANGE ACCURACY*
(18 to 28°C)
ACCURACY*
(0 to 50°C) IMPEDANCE
MAX
CONTINUOUS
OVERLOAD
RESOLUTION
±24 mVDC 0.02% of
reading +3 μV
0.07% of
reading +4 μV100 Mohm 30 V 1 μV
±240 mVDC 0.02% of
reading +30 μV
0.07% of
reading +40 μV100 Mohm 30 V 10 μV
*After 20 minute warm-up. Accuracy is specified in two ways: Accuracy over an 18
to 28°C and 10 to 75% RH environment; and accuracy over a 0 to 50°C and 0 to
85% RH (non-condensing environment). Accuracy over the 0 to 50°C range
includes the temperature coefficient effect of the meter.

E
3831-717-767-6511
MODEL PAXT - THERMOCOUPLE AND RTD INPUT
zTHERMOCOUPLE AND RTD INPUTS
zCONFORMS TO ITS-90 STANDARDS
zCUSTOM SCALING FOR NON-STANDARD PROBES
zTIME-TEMPERATURE INTEGRATOR
PAXT SPECIFICATIONS
READOUT:
Resolution: Variable: 0.1, 0.2, 0.5, or 1, 2, or 5 degrees
Scale: F or C
Offset Range: -19,999 to 99,999 display units
THERMOCOUPLE INPUTS:
Input Impedance: 20 MΩ
Lead Resistance Effect: 0.03μV/ohm
Max. Continuous Overvoltage: 30 V
RTD INPUTS:
Type: 3 or 4 wire, 2 wire can be compensated for lead wire resistance
Excitation current: 100 ohm range: 165 μA
10 ohm range: 2.6 mA
Lead resistance: 100 ohm range: 10 ohm/lead max.
10 ohm range: 3 ohms/lead max.
Max. continuous overload: 30 V
CUSTOM RANGE: Up to 16 data point pairs
Input range: -10 to 65 mV
0 to 400 ohms, high range
0 to 25 ohms, low range
Display range: -19999 to 99999
STANDARD
***
ACCURACY*
(0 to 50°C)
ACCURACY*
(18 to 28°C)
RANGE
no official
standard
0.9°C0.4°C-100 to 260°C
10 ohm Copper
alpha = .00427
INPUT TYPE
no official
standard
0.5°C0.2°C-80 to 260°C
120 ohm Nickel
alpha = .00672
no official
standard
1.6°C0.4°C-200 to 850°C
100 ohm Pt
alpha = .003919
IEC 7511.6°C0.4°C-200 to 850°C
100 ohm Pt
alpha = .00385
0.20% of reading
+ 0.007 Ω
0.04% of reading
+ 0.005 Ω
0 to 25 Ω
(1 MΩres.)
Custom
10 ohm range
0.12% of reading
+ 0.05 Ω
0.02% of reading
+ 0.04 Ω
0 to 400 Ω
(10 MΩres.)
Custom
100 ohm range
ACCURACY*
(0 to 50°°C)
0.12% of reading
+ 5μV
0.02% of reading
+ 4μV
-10 to 65mV
(1 μV res.)
Custom
mV range
ACCURACY*
(18 to 28°°C)
RANGEINPUT TYPE
WIRE COLOR
INPUT
TYPE RANGE ACCURACY*
(0 to 50°C) STANDARD
ANSI BS 1843
T-200 to 400°C
-270 to -200°C
1.2°C
**
2.1°C ITS-90 (+) blue
(-) red
(+) white
(-) blue
E-200 to 871°C
-270 to -200°C
1.0°C
**
2.4°C ITS-90 (+) purple
(-) red
(+) brown
(-) blue
J-200 to 760°C 1.1°C 2.3°C ITS-90 (+) white
(-) red
(+) yellow
(-) blue
K-200 to 1372°C
-270 to -200°C
1.3°C
**
3.4°C ITS-90 (+) yellow
(-) red
(+) brown
(-) blue
R-50 to 1768°C 1.9°C 4.0°C ITS-90 no
standard
(+) white
(-) blue
S-50 to 1768°C 1.9°C 4.0°C ITS-90 no
standard
(+) white
(-) blue
B100 to 300°C
300 to 1820°C
3.9°C
2.8°C
5.7°C
4.4°C ITS-90 no
standard
no
standard
N1.3°C
**
3.1°C ITS-90 (+) orange
(-) red
(+) orange
(-) blue
C
(W5/W26) 0 to 2315°C 1.9°C 6.1°C ASTM
E988-90***
no
standard
no
standard
*After 20 min. warm-up. Accuracy is specified in two ways: Accuracy over an 18
to 28°C and 15 to 75% RH environment; and Accuracy over a 0 to 50°C and 0 to
85% RH (non condensing) environment. Accuracy specified over the 0 to 50°C
operating range includes meter tempco and ice point tracking effects. The
specification includes the A/D conversion errors, linearization conformity, and
thermocouple ice point compensation. Total system accuracy is the sum of meter
and probe errors. Accuracy may be improved by field calibrating the meter readout
at the temperature of interest.
** The accuracy over the interval -270 to -200°C is a function of temperature,
ranging from 1°C at -200°C and degrading to 7°C at -270°C. Accuracy may be
improved by field calibrating the meter readout at the temperature of interest.
*** These curves have been corrected to ITS-90.
ACCURACY*
(18 to 28°C)
-200 to 1300°C
-270 to -200°C
ACCESSORIES
UNITS LABEL KIT (PAXLBK) - Not required for PAXT
Each meter has a units indicator with backlighting that can be customized
using the Units Label Kit. The backlight is controlled in the programming.
Each PAXT meter is shipped with °F and °C overlay labels which can be
installed into the meter’s bezel display assembly.
EXTERNAL CURRENT SHUNTS (APSCM)
To measure DC current signals greater than 2 ADC, a shunt must be used. The
APSCM010 current shunt converts a maximum 10 ADC signal into 100.0 mV.
The APSCM100 current shunt converts a maximum 100 ADC signal into 100.0
mV. The continuous current through the shunt is limited to 115% of the rating.

E
384 www.redlion.net
WARNING: Disconnect all power to the unit before
installing Plug-in cards.
Adding Option Cards
The PAX and MPAX series meters can be fitted with up to three optional plug-
in cards. The details for each plug-in card can be reviewed in the specification
section below. Only one card from each function type can be installed at one time.
The function types include Setpoint Alarms (PAXCDS), Communications
(PAXCDC), and Analog Output (PAXCDL). The plug-in cards can be installed
initially or at a later date.
PAXH Isolation Specifications For All Option Cards
Isolation To Sensor Commons: 1400 Vrms for 1 min.
Working Voltage: 125 V
Isolation to User Input Commons: 500 Vrms for 1 min.
Working Voltage 50 V
COMMUNICATION CARDS (PAXCDC)
A variety of communication protocols are available for the PAX and MPAX
series. Only one of these cards can be installed at a time. When programming
the unit via RLCPro, a Windows®based program, the RS232 or RS485 Cards
must be used.
SERIAL COMMUNICATIONS CARD
Type: RS485 or RS232
Isolation To Sensor & User Input Commons: 500 Vrms for 1 min.
Working Voltage: 50 V. Not Isolated from all other commons.
Data: 7/8 bits
Baud: 300 to 19,200
Parity: no, odd or even
Bus Address: Selectable 0 to 99, Max. 32 meters per line (RS485)
Transmit Delay: Selectable for 2 to 50 msec or 50 to 100 msec (RS485)
DEVICENET™ CARD
Compatibility: Group 2 Server Only, not UCMM capable
Baud Rates: 125 Kbaud, 250 Kbaud, and 500 Kbaud
Bus Interface: Phillips 82C250 or equivalent with MIS wiring protection per
DeviceNet™ Volume I Section 10.2.2.
Node Isolation: Bus powered, isolated node
Host Isolation: 500 Vrms for 1 minute (50 V working) between DeviceNet™
and meter input common.
MODBUS CARD
Type: RS485; RTU and ASCII MODBUS modes
Isolation To Sensor & User Input Commons: 500 Vrms for 1 minute.
Working Voltage: 50 V. Not isolated from all other commons.
Baud Rates: 300 to 38400.
Data: 7/8 bits
Parity: No, Odd, or Even
Addresses: 1 to 247.
Transmit Delay: Programmable; See Transmit Delay explanation.
PROFIBUS-DP CARD
Fieldbus Type: Profibus-DP as per EN 50170, implemented with Siemens
SPC3 ASIC
Conformance: PNO Certified Profibus-DP Slave Device
Baud Rates: Automatic baud rate detection in the range 9.6 Kbaud to 12 Mbaud
Station Address: 0 to 126, set by the master over the network. Address stored
in non-volatile memory.
Connection: 9-pin Female D-Sub connector
Network Isolation: 500 Vrms for 1 minute (50 V working) between Profibus
network and sensor and user input commons. Not isolated from all other
commons.
PROGRAMMING SOFTWARE
The Crimson®software is a Windows®based program that allows
configuration of the PAX®meter from a PC. Crimson offers standard drop-down
menu commands, that make it easy to program the meter. The meter’s program
can then be saved in a PC file for future use. A PAX®serial plug-in card is
required to program the meter using the software.
SETPOINT CARDS (PAXCDS)
The PAX and MPAX series has 4 available setpoint alarm output plug-in
cards. Only one of these cards can be installed at a time. (Logic state of the
outputs can be reversed in the programming.) These plug-in cards include:
PAXCDS10 - Dual Relay, FORM-C, Normally open & closed
PAXCDS20 - Quad Relay, FORM-A, Normally open only
PAXCDS30 - Isolated quad sinking NPN open collector
PAXCDS40 - Isolated quad sourcing PNP open collector
DUAL RELAY CARD
Type: Two FORM-C relays
Isolation To Sensor & User Input Commons: 2000 Vrms for 1 min.
Working Voltage: 240 Vrms
Contact Rating:
One Relay Energized: 5 amps @ 120/240 VAC or 28 VDC (resistive load),
1/8 HP @120 VAC, inductive load
Total current with both relays energized not to exceed 5 amps
Life Expectancy: 100 K cycles min. at full load rating. External RC snubber
extends relay life for operation with inductive loads
QUAD RELAY CARD
Type: Four FORM-A relays
Isolation To Sensor & User Input Commons: 2300 Vrms for 1 min.
Working Voltage: 250 Vrms
Contact Rating:
One Relay Energized: 3 amps @ 240 VAC or 30 VDC (resistive load), 1/10
HP @120 VAC, inductive load
Total current with all four relays energized not to exceed 4 amps
Life Expectancy: 100K cycles min. at full load rating. External RC snubber
extends relay life for operation with inductive loads
QUAD SINKING OPEN COLLECTOR CARD
Type: Four isolated sinking NPN transistors.
Isolation To Sensor & User Input Commons: 500 Vrms for 1 min.
Working Voltage: 50 V. Not Isolated from all other commons.
Rating: 100 mA max @ VSAT = 0.7 V max. VMAX = 30 V
QUAD SOURCING OPEN COLLECTOR CARD
Type: Four isolated sourcing PNP transistors.
Isolation To Sensor & User Input Commons: 500 Vrms for 1 min.
Working Voltage: 50 V. Not Isolated from all other commons.
Rating: Internal supply: 24 VDC ± 10% , 30 mA max. total
External supply: 30 VDC max., 100 mA max. each output
ALL FOUR SETPOINT CARDS
Response Time: 200 msec. max. to within 99% of final readout value (digital
filter and internal zero correction disabled)
700 msec. max. (digital filter disabled, internal zero correction enabled)
LINEAR DC OUTPUT (PAXCDL)
Either a 0(4)-20 mA or 0-10 V retransmitted linear DC output is available
from the analog output plug-in card. The programmable output low and high
scaling can be based on various display values. Reverse slope output is possible
by reversing the scaling point positions.
PAXCDL10 - Retransmitted Analog Output Card
ANALOG OUTPUT CARD
Types: 0 to 20 mA, 4 to 20 mA or 0 to 10 VDC
Isolation To Sensor & User Input Commons: 500 Vrms for 1 min.
Working Voltage: 50 V. Not Isolated from all other commons.
Accuracy: 0.17% of FS (18 to 28°C); 0.4% of FS (0 to 50°C)
Resolution: 1/3500
Compliance: 10 VDC: 10 KΩload min., 20 mA: 500 Ωload max.
Powered: Self-powered
Update time: 200 msec. max. to within 99% of final output value (digital
filter and internal zero correction disabled)
700 msec. max. (digital filter disabled, internal zero correction enabled)
OPTIONAL PLUG-IN OUTPUT CARDS
PAXCDC30 - DeviceNet
PAXCDC50 - Profibus-DPPAXCDC20 - RS232 Serial
PAXCDC40 - ModbusPAXCDC10 - RS485 Serial

E
3851-717-767-6511
Installation
The PAX meets NEMA 4X/IP65 requirements when properly installed. The
unit is intended to be mounted into an enclosed panel. Prepare the panel cutout
to the dimensions shown. Remove the panel latch from the unit. Slide the panel
gasket over the rear of the unit to the
back of the bezel. The unit should
be installed fully assembled.
Insert the unit into the panel
cutout.
While holding the unit in place, push the panel latch over the rear of the unit
so that the tabs of the panel latch engage in the slots on the case. The panel
latch should be engaged in the farthest forward slot possible. To achieve a
proper seal, tighten the latch screws evenly until the unit is snug in the panel
(Torque to approximately 7 in-lbs [79N-cm]). Do not over-tighten the screws.
Installation Environment
The unit should be installed in a location that does not exceed the maximum
operating temperature and provides good air circulation. Placing the unit near
devices that generate excessive heat should be avoided.
The bezel should be cleaned only with a soft cloth and neutral soap product.
Do NOT use solvents. Continuous exposure to direct sunlight may accelerate
the aging process of the bezel.
Do not use tools of any kind (screwdrivers, pens, pencils, etc.) to operate the
keypad of the unit.
PANEL CUT-OUT
1.0 INSTALLING THE METER
2.0 SETTING THE JUMPERS
The meter can have up to four jumpers that must be checked and / or changed
prior to applying power. The following Jumper Selection Figures show an
enlargement of the jumper area.
To access the jumpers, remove the meter base from the case by firmly
squeezing and pulling back on the side rear finger tabs. This should lower the
latch below the case slot (which is located just in front of the finger tabs). It is
recommended to release the latch on one side, then start the other side latch.
Input Range Jumper
This jumper is used to select the proper input range. The input range selected
in programming must match the jumper setting. Select a range that is high enough
to accommodate the maximum input to avoid overloads. The selection is different
for each meter. See the Jumper Selection Figure for appropriate meter.
Excitation Output Jumper
If your meter has excitation, this jumper is used to select the excitation range
for the application. If excitation is not being used, it is not necessary to check or
move this jumper.
User Input Logic Jumper
This jumper selects the logic state of all the user inputs. If the user inputs are
not used, it is not necessary to check or move this jumper.
PAXH:
Signal Jumper
This jumper is used to select the signal type. For current signals, the jumper
is installed. For voltage signals, remove the jumper from the board. (For 2 V
inputs, this removed jumper can be used in the “2 V only” location.)
Couple Jumper
This jumper is used for AC / DC couple. If AC couple, then the jumper is
removed from the board. If DC couple is used, then the jumper is installed.
PAXD Jumper Selection
Main
Circuit
Board
JUMPER
LOCATION
JUMPER
LOCATION
CURRENT EXCITATION
USER INPUT
VOLT/
OHM
JUMPER SELECTIONS
The indicates factory setting.
Input Range Jumper
One jumper is used for voltage/ohms or current input ranges. Select the proper input range high
enough to avoid input signal overload. Only one jumper is allowed in this area. Do not have a jumper
in both the voltage and current ranges at the same time. Avoid placing the jumper across two ranges.

E
386 www.redlion.net
PAXP Jumper Selection
PAXS Jumper Selection
JUMPER SELECTIONS
The indicates factory setting.
Main
Circuit
Board
USER INPUT
JUMPER
LOCATION
Main
Circuit
Board
JUMPER
LOCATION
JUMPER
LOCATION
USER INPUT
INPUT RANGE
BRIDGE
JUMPER SELECTIONS
The indicates factory setting.
Bridge Excitation
One jumper is used to select bridge excitation to allow use of the higher sensitivity 24 mV input
range. Use the 5 V excitation with high output (3 mV/V) bridges. The 5 V excitation also reduces
bridge power compared to 10 V excitation.
A maximum of four 350 ohm load cells can be driven by the internal bridge excitation voltage.
PAXH Jumper Selection
JUMPER SELECTIONS
The indicates factory setting.
Signal Jumper
One jumper is used for the input signal type. For current signals, the jumper
is installed. For voltage signals, remove the jumper from the board. (For 2 V
inputs, this removed jumper can be used in the “2 V only” location.)
Couple Jumper
One jumper is used for AC / DC couple. If AC couple is used, then the jumper
is removed from the board. If DC couple is used, then the jumper is installed.
Input Range Jumper
For most inputs, one jumper is used to select the input range. However, for
the following ranges, set the jumpers as stated:
5 A: Remove all jumpers from the input range.
2 V: Install one jumper in “.2/2V” position and one jumper in “2 V only”.
All Other Ranges: One jumper in the selected range only.
Do not have a jumper in both the voltage and current ranges at the same time.
Avoid placing a jumper across two ranges.
CAUTION: To maintain the electrical safety of the meter, remove
unneeded jumpers completely from the meter. Do not move the
jumpers to positions other than those specified.
Main
Circuit
Board
Jumper
Locations CURR/VOLT
SIGNAL
2 V ONLY
USER INPUT
AC/DC COUPLE
VOLTAGE
CURRENT
RANGES

E
3871-717-767-6511
WIRING OVERVIEW
Electrical connections are made via screw-clamp terminals located on the
back of the meter. All conductors should conform to the meter’s voltage and
current ratings. All cabling should conform to appropriate standards of good
installation, local codes and regulations. It is recommended that power supplied
to the meter (DC or AC) be protected by a fuse or circuit breaker.
When wiring the meter, compare the numbers embossed on the back of the
meter case against those shown in wiring drawings for proper wire position.
Strip the wire, leaving approximately 0.3" (7.5 mm) bare lead exposed (stranded
wires should be tinned with solder). Insert the lead under the correct screw-
clamp terminal and tighten until the wire is secure. (Pull wire to verify
tightness.) Each terminal can accept up to one #14 AWG (2.55 mm) wire, two
#18 AWG (1.02 mm), or four #20 AWG (0.61 mm).
EMC INSTALLATION GUIDELINES
Although this meter is designed with a high degree of immunity to Electro-
Magnetic Interference (EMI), proper installation and wiring methods must be
followed to ensure compatibility in each application. The type of the electrical
noise, its source or the method of coupling into the unit may be different for
various installations.Listed below are some EMC guidelines for successful
installation in an industrial environment.
1. The meter should be mounted in a metal enclosure, which is properly
connected to protective earth.
2. With use of the lower input ranges or signal sources with high source
impedance, the use of shielded cable may be necessary. This helps to guard
against stray AC pick-up. Attach the shield to the input common of the meter.
Line voltage monitoring and 5A CT applications do not usually require
shielding.
3. To minimize potential noise problems, power the meter from the same power
branch, or at least the same phase voltage as that of the signal source.
4. Never run Signal or Control cables in the same conduit or raceway with AC
power lines, conductors feeding motors, solenoids, SCR controls, and
heaters, etc. The cables should be run in metal conduit that is properly
grounded. This is especially useful in applications where cable runs are long
and portable two-way radios are used in close proximity or if the installation
is near a commercial radio transmitter.
5. Signal or Control cables within an enclosure should be routed as far away as
possible from contactors, control relays, transformers, and other noisy
components.
6. In extremely high EMI environments, the use of external EMI suppression
devices, such as ferrite suppression cores, is effective. Install them on Signal
and Control cables as close to the unit as possible. Loop the cable through the
core several times or use multiple cores on each cable for additional
protection. Install line filters on the power input cable to the unit to suppress
power line interference. Install them near the power entry point of the
enclosure. The following EMI suppression devices (or equivalent) are
recommended:
Ferrite Suppression Cores for signal and control cables:
Fair-Rite # 0443167251 (RLC #FCOR0000)
TDK # ZCAT3035-1330A
Steward #28B2029-0A0
Line Filters for input power cables:
Schaffner # FN610-1/07 (RLC #LFIL0000)
Schaffner # FN670-1.8/07
Corcom #1VR3
Note: Reference manufacturer’s instructions when installing a line filter.
7. Long cable runs are more susceptible to EMI pickup than short cable runs.
Therefore, keep cable runs as short as possible.
8. Switching of inductive loads produces high EMI. Use of snubbers across
inductive loads suppresses EMI.
Snubber: RLC#SNUB0000.
3.0 WIRING THE METER
3.1 POWER WIRING
AC Power
Terminal 1: VAC
Terminal 2: VAC
DC Power
Terminal 1: +VDC
Terminal 2: -VDC
PAXT Jumper Selection
Main
Circuit
Board
JUMPER
LOCATION
JUMPER
LOCATION
USER INPUT
RTD
INPUT
JUMPER SELECTIONS
The indicates factory setting.
RTD Input Jumper
One jumper is used for RTD input ranges. Select the proper range to match
the RTD probe being used. It is not necessary to remove this jumper when
not using RTD probes.

E
388 www.redlion.net
Current Signal
(self powered)
Terminal 4: +ADC
Terminal 5: -ADC
Voltage Signal
(self powered)
Terminal 3: +VDC
Terminal 5: -VDC
Current Signal (2 wire
requiring excitation)
Terminal 4: -ADC
Terminal 6: +ADC
Excitation Jumper: 24 V
Before connecting signal wires, the Input Range Jumper and Excitation Jumper should be verified for proper position.
3.2 INPUT SIGNAL WIRING
Current Signal (3 wire
requiring excitation)
Terminal 4: +ADC (signal)
Terminal 5: -ADC (common)
Terminal 6: +Volt supply
Excitation Jumper: 24 V
Voltage Signal (3 wire
requiring excitation)
Terminal 3: +VDC (signal)
Terminal 5: -VDC (common)
Terminal 6: +Volt supply
Excitation Jumper: 24 V
Resistance Signal
(3 wire requiring
excitation)
Terminal 3: Resistance
Terminal 5: Resistance
Terminal 6: Jumper to
terminal 3
Excitation Jumper:
1.75 mA REF.
Potentiometer Signal
(3 wire requiring excitation)
Terminal 3: Wiper
Terminal 5: Low end of pot.
Terminal 6: High end of pot.
Excitation Jumper: 2 V REF.
Input Range Jumper: 2 Volt
Module 1 Input Range: 2 Volt
Note: The Apply signal scaling style
should be used because the signal will
be in volts.
Current Signal
(self powered)
Terminal 4: +ADC
Terminal 5: -ADC
Voltage Signal
(self powered)
Terminal 3: +VDC
Terminal 5: -VDC
Current Signal (2 wire
requiring excitation)
Terminal 4: -ADC
Terminal 6: +ADC
PAXP INPUT SIGNAL WIRING
PAXD INPUT SIGNAL WIRING
Current Signal (3 wire
requiring excitation)
Terminal 4: +ADC (signal)
Terminal 5: -ADC (common)
Terminal 6: +Volt supply
Voltage Signal (3 wire
requiring excitation)
Terminal 3: +VDC (signal)
Terminal 5: -VDC (common)
Terminal 6: +Volt supply
CAUTION: Sensor input common is NOT isolated from user input common. In order to preserve the safety of the meter application, the sensor input
common must be suitably isolated from hazardous live earth referenced voltages; or input common must be at protective earth ground potential. If not,
hazardous live voltage may be present at the User Inputs and User Input Common terminals. Appropriate considerations must then be given to the
potential of the user input common with respect to earth common; and the common of the isolated plug-in cards with respect to input common.
CAUTION: Sensor input common is NOT isolated from user input common. In order to preserve the safety of the meter application, the sensor input
common must be suitably isolated from hazardous live earth referenced voltages; or input common must be at protective earth ground potential. If not,
hazardous live voltage may be present at the User Inputs and User Input Common terminals. Appropriate considerations must then be given to the
potential of the user input common with respect to earth common; and the common of the isolated plug-in cards with respect to input common.

E
3891-717-767-6511
4-Wire Bridge Input
2-Wire Single
Ended Input
6-Wire Bridge Input
DEADLOAD COMPENSATION
In some cases, the combined deadload and liveload output may exceed the
range of the 24 mV input. To use this range, the output of the bridge can be offset
a small amount by applying a fixed resistor across one arm of the bridge. This
shifts the electrical output of the bridge downward to within the operating range
of the meter. A 100 K ohm fixed resistor shifts the bridge output approximately
-10 mV (350 ohm bridge, 10 V excitation).
Connect the resistor between +SIG and -SIG. Use a metal film resistor with a
low temperature coefficient of resistance.
BRIDGE COMPLETION RESISTORS
For single strain gage applications, bridge completion resistors must be
employed externally to the meter. Only use metal film resistors with a low
temperature coefficient of resistance.
Load cells and pressure transducers are normally implemented as full
resistance bridges and do not require bridge completion resistors.
Before connecting signal wires, the Input Range Jumper should be verified for proper position.
PAXT INPUT SIGNAL WIRING
3-Wire RTD
Thermocouple 2-Wire RTD CAUTION: Sensor input common is NOT isolated
from user input common. In order to preserve the
safety of the meter application, the sensor input
common must be suitably isolated from hazardous
live earth referenced voltages; or input common
must be at protective earth ground potential. If not,
hazardous live voltage may be present at the User
Inputs and User Input Common terminals.
Appropriate considerations must then be given to the
potential of the user input common with respect to
earth common; and the common of the isolated plug-
in cards with respect to input common.
CAUTION:
1. Where possible, connect the neutral side of the signal (including current shunts) to the input common of the meter. If the input signal is sourced from
an active circuit, connect the lower impedance (usually circuit common) to the input signal common of the meter.
2. For phase-to-phase line monitoring where a neutral does not exist, or for any other signal input in which the isolation voltage rating is exceeded, an isolating potential
transformer must be used to isolate the input voltage from earth. With the transformer, the input common of the meter can then be earth referenced for safety.
3. When measuring line currents, the use of a current transformer is recommended. If using external current shunts, insert the shunt in the neutral return line. If the
isolation voltage rating is exceeded, the use of an isolating current transformer is necessary.
Current Signal (Amps)Voltage Signal Current Signal (Milliamps)
Before connecting signal wires, the Signal, Input Range and Couple Jumpers
should be verified for proper position.
CAUTION: Connect only one input signal range to the
meter. Hazardous signal levels may be present on
unused inputs.
CAUTION: The isolation rating of the input common of the
meter with respect to the option card commons and the
user input common Terminal 8 (If used) is 125 Vrms; and
250 Vrms with respect to AC Power (meter Terminals 1 &
2). To be certain that the ratings are not exceeded, these
voltages should be verified by a high-voltage meter before
wiring the meter.
PAXS INPUT SIGNAL WIRING
PAXH INPUT SIGNAL WIRING

E
390 www.redlion.net
Sinking Logic
Terminal 8-10:
Terminal 7: }
In this logic, the user inputs of the
meter are internally pulled up to +5 V
with 22 K resistance. The input is active
when it is pulled low (<0 .9 V).
3.3 USER INPUT WIRING
Before connecting the wires, the User Input Logic Jumper should be verified for proper position. If not using User
Inputs, then skip this section. Only the appropriate User Input terminal has to be wired.
Sourcing Logic
Terminal 8-10: + VDC thru external switching device
Terminal 7: -VDC thru external switching device
In this logic, the user inputs of the meter are
internally pulled down to 0 V with 22 K
resistance. The input is active when a voltage
greater than 3.6 VDC is applied.
Connect external switching device between
appropriate User Input terminal and User Comm.
Sourcing Logic
Terminals 9-11:
+ VDC through external switching device
Terminal 8:
-VDC through external switching device
In this logic, the user inputs of the meter are
internally pulled down with 22 K resistance.
The input is active when a voltage greater
than 3.6 VDC is applied.
Sinking Logic
Terminals 9-11
Terminal 8
In this logic, the user inputs of the
meter are internally pulled up to +5 V
with 22 K resistance. The input is
active when it is pulled low (<0 .9 V).
Connect external
switching device between
appropriate User Input
terminal and User Comm.
}
PAXH ONLY
*Display Readout Legends may be locked out in Factory Settings.
** Factory setting for the F1, F2, and RST keys is NO mode.
RST
F2W
F1V
PAR
DSP
KEY
Hold with F1V, F2Wto scroll value by x1000
Reset (Function key)**
Decrement selected parameter value
Function key 2; hold for 3 seconds for Second Function 2**
Increment selected parameter value
Function key 1; hold for 3 seconds for Second Function 1**
Store selected parameter and index to next parameterAccess parameter list
Quit programming and return to display modeIndex display through max/min/total/input readouts
PROGRAMMING MODE OPERATIONDISPLAY MODE OPERATION
4.0 REVIEWING THE FRONT BUTTONS AND DISPLAY
3.4 SETPOINT (ALARMS) WIRING
3.5 SERIAL COMMUNICATION WIRING
3.6 ANALOG OUTPUT WIRING
⎫⎫
⎬⎬
⎭⎭
See appropriate plug-in card bulletin for details.

E
3911-717-767-6511
OVERVIEW
PROGRAMMING MENU
5.0 PROGRAMMING THE METER
DISPLAY MODE
The meter normally operates in the Display Mode. In this mode, the meter
displays can be viewed consecutively by pressing the DSP key. The
annunciators to the left of the display indicate which display is currently shown;
Max Value (MAX), Min Value (MIN), or Totalizer Value (TOT). Each of these
displays can be locked from view through programming. (See Module 3) The
Input Display Value is shown with no annunciator.
PROGRAMMING MODE
Two programming modes are available.
Full Programming Mode permits all parameters to be viewed and modified.
Upon entering this mode, the front panel keys change to Programming Mode
operations. This mode should not be entered while a process is running, since
the meter functions and User Input response may not operate properly while
in Full Programming Mode.
Quick Programming Mode permits only certain parameters to be viewed
and/or modified. When entering this mode, the front panel keys change to
Programming Mode operations, and all meter functions continue to operate
properly. Quick Programming Mode is configured in Module 3. The Display
Intensity Level “” parameter is available in the Quick Programming
Mode only when the security code is non-zero. For a description, see Module
9—Factory Service Operations. Throughout this document, Programming
Mode (without Quick in front) always refers to “Full” Programming Mode.
PROGRAMMING TIPS
The Programming Menu is organized into nine modules (See above). These
modules group together parameters that are related in function. It is
recommended to begin programming with Module 1 and proceed through each
module in sequence. Note that Modules 6 through 8 are only accessible when
the appropriate plug-in option card is installed. If lost or confused while
programming, press the DSP key to exit programming mode and start over.
When programming is complete, it is recommended to record the meter settings
on the Parameter Value Chart and lock-out parameter programming with a User
Input or lock-out code. (See Modules 2 and 3 for lock-out details.)
FACTORY SETTINGS
Factory Settings may be completely restored in Module 9. This is a good
starting point if encountering programming problems. Throughout the module
description sections which follow, the factory setting for each parameter is
shown below the parameter display. In addition, all factory settings are listed on
the Parameter Value Chart following the programming section.
ALTERNATING SELECTION DISPLAY
In the module description sections which follow, the dual display with
arrows appears for each programming parameter. This is used to illustrate the
display alternating between the parameter (top display) and the parameter's
Factory Setting (bottom display). In most cases, selections or value ranges for
the parameter will be listed on the right.
Indicates Program Mode Alternating Display
Parameter
Selection/Value
ª
«
STEP BY STEP PROGRAMMING INSTRUCTIONS:
PROGRAMMING MODE ENTRY (PAR KEY)
The Programming Mode is entered by pressing the PAR key. If this mode is
not accessible, then meter programming is locked by either a security code or a
hardware lock. (See Modules 2 and 3 for programming lock-out details.)
MODULE ENTRY (ARROW & PAR KEYS)
Upon entering the Programming Mode, the display alternates between
and the present module (initially ). The arrow keys (F1Sand F2T) are used
to select the desired module, which is then entered by pressing the PAR key.
PARAMETER (MODULE) MENU (PAR KEY)
Each module has a separate parameter menu. These menus are shown at the
start of each module description section which follows. The PAR key is pressed
to advance to a particular parameter to be changed, without changing the
programming of preceding parameters. After completing a module, the display
will return to . From this point, programming may continue by selecting
and entering additional modules. (See MODULE ENTRY above.)
PARAMETER SELECTION ENTRY (ARROW & PAR KEYS)
For each parameter, the display alternates between the parameter and the
present selection or value for that parameter. For parameters which have a list
of selections, the arrow keys (F1Sand F2T) are used to sequence through the
list until the desired selection is displayed. Pressing the PAR key stores and
activates the displayed selection, and also advances the meter to the next
parameter.
NUMERICAL VALUE ENTRY (ARROW, RST & PAR KEYS)
For parameters which require a numerical value entry, the arrow keys can be
used to increment or decrement the display to the desired value. When an arrow
key is pressed and held, the display automatically scrolls up or scrolls down.
The longer the key is held, the faster the display scrolls.
The RST key can be used in combination with the arrow keys to enter large
numerical values. When the RST key is pressed along with an arrow key, the
display scrolls by 1000’s. Pressing the PAR key stores and activates the
displayed value, and also advances the meter to the next parameter.
PROGRAMMING MODE EXIT (DSP KEY or PAR KEY at )
The Programming Mode is exited by pressing the DSP key (from anywhere
in the Programming Mode) or the PAR key (with displayed). This will
commit any stored parameter changes to memory and return the meter to the
Display Mode. If a parameter was just changed, the PAR key should be pressed
to store the change before pressing the DSP key. (If power loss occurs before
returning to the Display Mode, verify recent parameter changes.)

E
392 www.redlion.net
5.1 MODULE 1 - SIGNAL INPUT PARAMETERS ()
ª
«
ª
«
PAXH INPUT RANGE
PAXH INPUT COUPLE
Select the input range that corresponds to the external signal. This selection
should be high enough to avoid input signal overload but low enough for the
desired input resolution. This selection and the position of the Input Range
Jumper must match.
The input signal can be either AC coupled (rejecting the DC components of
the signal) or DC coupled (measures both the AC and DC components of the
signal). The coupling jumper and the setting of this parameter must match.
dC
or
AC
SELECTION
RANGE
RESOLUTION
5.000 A
200.00 mA
20.000 mA
2.0000 mA
200.00 µA
200uA
RANGE
RESOLUTION
SELECTION
300.0 V
20.000 V
2.0000 V
200.00 mV
0.2u
PAX PARAMETER MENU
PAXT PARAMETER MENU
ª
«
PAXD INPUT RANGE
Select the input range that corresponds to the external signal. This selection
should be high enough to avoid input signal overload but low enough for the
desired input resolution. This selection and the position of the Input Range
Jumper must match.
1000o
10000 ohm
1000.0 ohm
±200.00 mV
±2.0000 A
2A
SELECTION RANGE
RESOLUTION
RANGE
RESOLUTION
SELECTION
100o
300u
100.00 ohm
±300.00 V
±200.00 mA
20u
2u
±20.000 V
±2.0000 V
±20.000 mA
±2.0000 mA
±200.00 µA
200uA
Refer to the appropriate Input Range for the selected
meter. Use only one Input Range, then proceed to Display
Decimal Point.
ª
«
PAXP INPUT RANGE
Select the input range that corresponds to the external signal.
10.000 V
20.000 mA
RANGE
RESOLUTION
SELECTION
ª
«
PAXS INPUT RANGE
Select the input range that corresponds to the external signal. This selection
should be high enough to avoid input signal overload but low enough for the
desired input resolution. This selection and the position of the Input Range
Jumper must match.
RANGE
RESOLUTION
0.02u
SELECTION
±24 mV
±240 mV
ª
«
PAXT INPUT TYPE
Select the input type that corresponds to the input sensor. For RTD types,
check the RTD Input Jumper for matching selection. For custom types, the
Temperature Scale parameter is not available, the Display Decimal Point is
expanded, and Custom Sensor Scaling must be completed.
CS-rH
Custom RTD Low
Custom RTD High
N TC
B TC
Cu427
Custom TC
RTD copper 10 Ω
S TC
R TC
SELECTION TYPETYPESELECTION
Ni672
Pt392
RTD nickel 672
RTD platinum 392
K TC
Pt385
RTD platinum 385
C TC
J TC
E TC
TTC
tc-t
ª
«
PAXT TEMPERATURE SCALE
Select the temperature scale. This selection applies for Input, MAX, MIN,
and TOT displays. This does not change the user installed Custom Units
Overlay display. If changed, those parameters that relate to the temperature
scale should be checked. This selection is not available for custom sensor types.
°C°F
ª
«
0.000 0.00000.000.00
DISPLAY DECIMAL POINT
Select the decimal point location for the Input, MAX and MIN displays. (The
TOT display decimal point is a separate parameter.) This selection also affects
, and parameters and setpoint values.
For the PAXT, these are only
available with Custom Scaling.
⎫
⎬
⎭

E
3931-717-767-6511
PAXT: ICE POINT SLOPE
PAXT: TEMPERATURE DISPLAY OFFSET*
ª
«
DISPLAY ROUNDING*
100502010
521
Rounding selections other than one, cause the Input Display to ‘round’ to the
nearest rounding increment selected (ie. rounding of ‘5’ causes 122 to round to
120 and 123 to round to 125). Rounding starts at the least significant digit of
the Input Display. Remaining parameter entries (scaling point values, setpoint
values, etc.) are not automatically adjusted to this display rounding selection.
ª
«
The temperature display can be corrected with an offset value. This can be
used to compensate for probe errors, errors due to variances in probe placement
or adjusting the readout to a reference thermometer. This value is automatically
updated after a Zero Display to show how far the display is offset. A value of
zero will remove the affects of offset.
to
ª
«
FILTER SETTING*
The input filter setting is a time constant expressed in tenths of a second. The
filter settles to 99% of the final display value within approximately 3 time
constants. This is an Adaptive Digital Filter which is designed to steady the
Input Display reading. A value of ‘0’ disables filtering.
to seconds
ª
«
FILTER BAND*
The digital filter will adapt to variations in the input signal. When the
variation exceeds the input filter band value, the digital filter disengages. When
the variation becomes less than the band value, the filter engages again. This
allows for a stable readout, but permits the display to settle rapidly after a large
process change. The value of the band is in display units. A band setting of ‘0’
keeps the digital filter permanently engaged.
to display units
* Factory Setting can be used without affecting basic start-up.
ª
«
This parameter sets the slope value for ice point compensation for the
Custom TC range () only. The fixed thermocouple ranges are
automatically compensated by the meter and do not require this setting. To
calculate this slope, use μV data obtained from thermocouple manufacturers’
tables for two points between 0°C and 50°C. Place this corresponding μV and
°C information into the equation:
slope = (μV2- μV1)/(°C2- °C1).
Due to the nonlinear output of thermocouples, the compensation may show
a small offset error at room temperatures. This can be compensated by the offset
parameter. A value of 0 disables internal compensation when the thermocouple
is externally compensated.
to μV/°C
For the PAXT, the following parameters only apply to Custom
Sensor Scaling.
ª
«
SCALING POINTS*
Linear - Scaling Points (2)
For linear processes, only 2 scaling points are necessary. It is recommended
that the 2 scaling points be at opposite ends of the input signal being applied.
The points do not have to be the signal limits. Display scaling will be linear
between and continue past the entered points up to the limits of the Input Signal
Jumper position. Each scaling point has a coordinate-pair of Input Value ()
and an associated desired Display Value ().
Nonlinear - Scaling Points (Greater than 2)
For non-linear processes, up to 16 scaling points may be used to provide a
piece-wise linear approximation. (The greater the number of scaling points
used, the greater the conformity accuracy.) The Input Display will be linear
between scaling points that are sequential in program order. Each scaling point
has a coordinate-pair of Input Value () and an associated desired Display
Value (). Data from tables or equations, or empirical data could be used to
derive the required number of segments and data values for the coordinate pairs.
In the SFPAX software, several linearization equations are available.
to
ª
«
SCALING STYLE
If Input Values and corresponding Display Values are known, the Key-in
() scaling style can be used. This allows scaling without the presence or
changing of the input signal. If Input Values have to be derived from the actual
input signal source or simulator, the Apply () scaling style must be used.
After using the Apply () scaling style, this parameter will default back to
but the scaling values will be shown from the previous applied method.
This parameter does not apply for the PAXT. Scaling values for the PAXT
must be keyed-in.
ª
«
INPUT VALUE FOR SCALING POINT 1
For Key-in (), enter the known first Input Value by using the arrow keys.
The Input Range selection sets up the decimal location for the Input Value. With
0.02A Input Range, 4mA would be entered as 4.000. For Apply (), apply
the input signal to the meter, adjust the signal source externally until the desired
Input Value appears. In either method, press the PAR key to enter the value
being displayed.
to
ª
«
DISPLAY VALUE FOR SCALING POINT 1
to
Enter the first coordinating Display Value by using the arrow keys. This is
the same for and scaling styles. The decimal point follows the
selection.
ª
«
INPUT VALUE FOR SCALING POINT 2
to
For Key-in (), enter the known second Input Value by using the arrow
keys. For Apply (), adjust the signal source externally until the next
desired Input Value appears. (Follow the same procedure if using more than 2
scaling points.)
These bottom selections are not
available for the PAXT.
⎫
⎬
⎭
Note: style - Pressing the RST key will advance the display to the next
scaling display point without storing the input value.
KEY key-in data
APLY apply signal

E
394 www.redlion.net
ª
«
DISPLAY VALUE FOR SCALING POINT 2
to
General Notes on Scaling
1. Input Values for scaling points should be confined to the limits of the Input
Range Jumper position.
2. The same Input Value should not correspond to more than one Display Value.
(Example: 20 mA can not equal 0 and 10.)
This is referred to as read out jumps (vertical scaled segments).
3. The same Display Value can correspond to more than one Input Value.
(Example: 0 mA and 20 mA can equal 10.)
This is referred to as readout dead zones (horizontal scaled segments).
4. The maximum scaled Display Value spread between range maximum and
minimum is limited to 65,535. For example using +20 mA range the
maximum +20 mA can be scaled to is 32,767 with 0 mA being 0 and Display
Rounding of 1. (Decimal points are ignored.) The other half of 65,535 is for
the lower half of the range 0 to -20 mA even if it is not used. With Display
Rounding of 2, +20 mA can be scaled for 65,535 (32,767 x 2) but with even
Input Display values shown.
5. For input levels beyond the first programmed Input Value, the meter extends
the Display Value by calculating the slope from the first two coordinate pairs
( / & / ). If = 4 mA and = 0, then 0 mA
would be some negative Display Value. This could be prevented by making
= 0 mA / = 0, = 4 mA / = 0, with = 20 mA /
= the desired high Display Value. The calculations stop at the limits of
the Input Range Jumper position.
6. For input levels beyond the last programmed Input Value, the meter extends
the Display Value by calculating the slope from the last two sequential
coordinate pairs. If three coordinate pair scaling points were entered, then the
Display Value calculation would be between / & / .
The calculations stop at the limits of the Input Range Jumper position.
Enter the second coordinating Display Value by using the arrow keys. This is
the same for and scaling styles. (Follow the same procedure if using
more than 2 scaling points.)
5.2 MODULE 2 - USER INPUT AND FRONT PANEL FUNCTION KEY
PARAMETERS ()
PARAMETER MENU
The three user inputs are individually programmable to perform specific
meter control functions. While in the Display Mode or Program Mode, the
function is executed the instant the user input transitions to the active state.
The front panel function keys are also individually programmable to perform
specific meter control functions. While in the Display Mode, the primary
function is executed the instant the key is pressed. Holding the function key for
three seconds executes a secondary function. It is possible to program a
secondary function without a primary function.
In most cases, if more than one user input and/or function key is programmed
for the same function, the maintained (level trigger) actions will be performed
while at least one of those user inputs or function keys are activated. The
momentary (edge trigger) actions will be performed every time any of those
user inputs or function keys transition to the active state.
Note: In the following explanations, not all selections are available for both
user inputs and front panel function keys. Alternating displays are shown
with each selection. Those selections showing both displays are available for
both. If a display is not shown, it is not available for that selection.
will represent all three user inputs. will represent all five function keys.
ª
«
ª
«
NO FUNCTION
No function is performed if activated. This is the factory setting for all user
inputs and function keys. No function can be selected without affecting basic
start-up.
ª
«
PROGRAMMING MODE LOCK-OUT
Programming Mode is locked-out, as long as activated
(maintained action). A security code can be configured to
allow programming access during lock-out.
ZERO (TARE) DISPLAY
ª
«
ª
«
The Zero (Tare) Display provides a way to zero the Input Display value at
various input levels, causing future Display readings to be offset. This function
is useful in weighing applications where the container or material on the scale
should not be included in the next measurement value. When activated
(momentary action), flashes and the Display is set to zero. At the same
time, the Display value (that was on the display before the Zero Display) is
subtracted from the Display Offset Value and is automatically stored as the new
Display Offset Value (). If another Zero (tare) Display is performed, the
display will again change to zero and the Display reading will shift accordingly.
ª
«
ª
«
RELATIVE/ABSOLUTE DISPLAY
This function will switch the Input Display between Relative and Absolute.
The Relative is a net value that includes the Display Offset Value. The Input
Display will normally show the Relative unless switched by this function.
Regardless of the display selected, all meter functions continue to operate based
on relative values. The Absolute is a gross value (based on Module 1 DSP and
INP entries) without the Display Offset Value. The Absolute display is selected
as long as the user input is activated (maintained action) or at the transition of
the function key (momentary action). When the user input is released, or the
function key is pressed again, the input display switches back to Relative
display. (absolute) or (relative) is momentarily displayed at transition
to indicate which display is active.

E
3951-717-767-6511
ª
«
HOLD DISPLAY
The shown display is held but all other meter functions
continue as long as activated (maintained action).
ª
«
HOLD ALL FUNCTIONS
The meter disables processing the input, holds all display
contents, and locks the state of all outputs as long as activated
(maintained action). The serial port continues data transfer.
ª
«
SYNCHRONIZE METER READING
The meter suspends all functions as long as activated
(maintained action). When the user input is released, the
meter synchronizes the restart of the A/D with other
processes or timing events.
ª
«
ª
«
STORE BATCH READING IN TOTALIZER
The Input Display value is one time added (batched) to the Totalizer at
transition to activate (momentary action). The Totalizer retains a running sum of
each batch operation until the Totalizer is reset. When this function is selected,
the normal operation of the Totalizer is overridden.
ª
«
SELECT TOTALIZER DISPLAY
The Totalizer display is selected as long as activated
(maintained action). When the user input is released, the
Input Display is returned. The DSP key overrides the active
user input. The Totalizer continues to function including
associated outputs independent of being displayed.
ª
«
ª
«
RESET TOTALIZER
When activated (momentary action), flashes and the Totalizer resets to
zero. The Totalizer then continues to operate as it is configured. This selection
functions independent of the selected display.
ª
«
RESET AND ENABLE TOTALIZER
When activated (momentary action), flashes and
the Totalizer resets to zero. The Totalizer continues to
operate while active (maintained action). When the user
input is released, the Totalizer stops and holds its value. This
selection functions independent of the selected display.
ª
«
ENABLE TOTALIZER
The Totalizer continues to operate as long as activated
(maintained action). When the user input is released, the
Totalizer stops and holds its value. This selection functions
independent of the selected display.
ª
«
SELECT MAXIMUM DISPLAY
The Maximum display is selected as long as activated
(maintained action). When the user input is released, the
Input Display returns. The DSP key overrides the active
user input. The Maximum continues to function
independent of being displayed.
ª
«
RESET MAXIMUM
When activated (momentary action), flashes and
the Maximum resets to the present Input Display value. The
Maximum function then continues from that value. This
selection functions independent of the selected display.
ª
«
RESET, SELECT, ENABLE MAXIMUM DISPLAY
When activated (momentary action), the Maximum value
is set to the present Input Display value. Maximum continues
from that value while active (maintained action). When the
user input is released, Maximum detection stops and holds its
ª
«
SELECT MINIMUM DISPLAY
The Minimum display is selected as long as activated
(maintained action). When the user input is released, the
Input Display is returned. The DSP key overrides the active
user input. The Minimum continues to function
independent of being displayed.
RESET MINIMUM
ª
«
When activated (momentary action), flashes and
the Minimum reading is set to the present Input Display
value. The Minimum function then continues from that value.
This selection functions independent of the selected display.
ª
«
RESET, SELECT, ENABLE MINIMUM DISPLAY
When activated (momentary action), the Minimum value
is set to the present Input Display value. Minimum continues
from that value while active (maintained action). When the
user input is released, Minimum detection stops and holds
ª
«
ª
«
RESET MAXIMUM AND MINIMUM
When activated (momentary action), flashes and the Maximum and
Minimum readings are set to the present Input Display value. The Maximum and
Minimum function then continues from that value. This selection functions
independent of the selected display.
ª
«
ª
«
CHANGE DISPLAY INTENSITY LEVEL
When activated (momentary action), the display intensity changes to the next
intensity level (of 4). The four levels correspond to Display Intensity Level (
) settings of 0, 3, 8, and 15. The intensity level, when changed via the User
Input/ Function Key, is not retained at power-down, unless Quick Programming
or Full Programming mode is entered and exited. The meter will power-up at the
last saved intensity level.
its value. This selection functions independent of the selected display. The DSP
key overrides the active user input display but not the Minimum function.
value. This selection functions independent of the selected display. The DSP key
overrides the active user input display but not the Maximum function.

E
396 www.redlion.net
SETPOINT SELECTIONS
- Select main or alternate setpoints
- Reset Setpoint 1 (Alarm 1)
- Reset Setpoint 2 (Alarm 2)
- Reset Setpoint 3 (Alarm 3)
- Reset Setpoint 4 (Alarm 4)
- Reset Setpoint 3 & 4 (Alarm 3 & 4)
- Reset Setpoint 2, 3 & 4 (Alarm 2, 3 & 4)
- Reset Setpoint All (Alarm All)
The following selections are accessible only with the Setpoint plug-in card
installed. Refer to the Setpoint Card Bulletin shipped with the Setpoint plug-in
card for an explanation of their operation.
Setpoint
Card
Only
ª
«
ª
«
PRINT REQUEST
The meter issues a block print through the serial port when activated. The
data transmitted during a print request is programmed in Module 7. If the user
input is still active after the transmission is complete (about 100 msec), an
additional transmission occurs. As long as the user input is held active,
continuous transmissions occur.
ª
«
PROGRAM MODE SECURITY CODE*
By entering any non-zero value, the prompt will appear when trying
to access the Program Mode. Access will only be allowed after entering a
matching security code or universal code of . With this lock-out, a user input
would not have to be configured for Program Lock-out. However, this lock-out
is overridden by an inactive user input configured for Program Lock-out.
ª
«
ª
«
ª
«
ª
«
SP-1 SP-2 SP-3 SP-4 SETPOINT ACCESS*
The setpoint displays can be programmed for , or (See the
following table). Accessible only with the Setpoint plug-in card installed.
ª
«
ª
«
ª
«
MAXIMUM DISPLAY LOCK-OUT*
MINIMUM DISPLAY LOCK-OUT*
TOTALIZER DISPLAY LOCK-OUT*
These displays can be programmed for or . When programmed for
, the display will not be shown when the DSP key is pressed regardless of
Program Lock-out status. It is suggested to lock-out the display if it is not needed.
The associated function will continue to operate even if its display is locked-out.
5.3 MODULE 3 - DISPLAY AND PROGRAM LOCK-OUT
PARAMETERS ()
PARAMETER MENU
* Factory Setting can be used without affecting basic start-up.
to
Module 3 is the programming for Display lock-out and “Full” and “Quick”
Program lock-out.
When in the Display Mode, the available displays can be read consecutively
by repeatedly pressing the DSP key. An annunciator indicates the display being
shown. These displays can be locked from being visible. It is recommended that
the display be set to when the corresponding function is not used.
“Full” Programming Mode permits all parameters to be viewed and
modified. This Programming Mode can be locked with a security code and/or
user input. When locked and the PAR key is pressed, the meter enters a Quick
Programming Mode. In this mode, the setpoint values can still be read and/or
changed per the selections below. The Display Intensity Level ()
parameter also appears whenever Quick Programming Mode is enabled and the
security code is greater than zero.
SELECTION DESCRIPTION
Visible but not changeable in Quick Programming Mode
Visible and changeable in Quick Programming Mode
Not visible in Quick Programming Mode
Immediate access.“Full” ProgrammingNot Active
0
No accessQuick ProgrammingActive
0
Immediate access.“Full” ProgrammingNot Active
>0
After Quick Programming with correct code # at prompt.Quick Programming w/Display IntensityActive
>0
After Quick Programming with correct code # at prompt.Quick Programming w/Display Intensity————
not
>0
Immediate access.“Full” Programming————
not
0
“FULL” PROGRAMMING MODE ACCESS
WHEN PAR KEY IS
PRESSED
USER INPUT
STATE
USER INPUT
CONFIGURED
SECURITY
CODE
PROGRAMMING MODE ACCESS
Throughout this document, Programming Mode (without Quick in front) always refers to “Full” Programming (all meter parameters are accessible).
SELECTION DESCRIPTION
Visible in Display Mode
Not visible in Display Mode
⎧
⎨
⎩

E
3971-717-767-6511
ª
«
MAX CAPTURE DELAY TIME*
When the Input Display is above the present MAX value for the entered
delay time, the meter will capture that display value as the new MAX reading.
A delay time helps to avoid false captures of sudden short spikes.
ª
«
MIN CAPTURE DELAY TIME*
When the Input Display is below the present MIN value for the entered delay
time, the meter will capture that display value as the new MIN reading. A delay
time helps to avoid false captures of sudden short spikes.
ª
«
UNITS LABEL BACKLIGHT*
The Units Label Kit Accessory contains a sheet of custom unit overlays
which can be installed in to the meter’s bezel display assembly. The backlight
for these custom units is activated by this parameter.
ª
«
DISPLAY OFFSET VALUE*
Unless a Zero Display was performed or an offset from Module 1 scaling is
desired, this parameter can be skipped. The Display Offset Value is the
difference from the Absolute (gross) Display value to the Relative (net) Display
value for the same input level. The meter will automatically update this Display
Offset Value after each Zero Display. The Display Offset Value can be directly
keyed-in to intentionally add or remove display offset. See Relative / Absolute
Display and Zero Display explanations in Module 2.
ª
«
DISPLAY UPDATE RATE*
This parameter determines the rate of display update. When set to 20
updates/second, the internal re-zero compensation is disabled, allowing for the
fastest possible output response.
5.4 MODULE 4 - SECONDARY FUNCTION PARAMETERS ()
PARAMETER MENU
* Factory Setting can be used without affecting basic start-up.
to sec.
to sec.
to
updates/sec.
ª
«
PAXS: AUTO-ZERO TRACKING
to sec.
ª
«
PAXS: AUTO-ZERO BAND
to
The meter can be programmed to automatically compensate for zero drift.
Drift may be caused by changes in the transducers or electronics, or
accumulation of material on weight systems.
Auto-zero tracking operates when the readout remains within the tracking
band for a period of time equal to the tracking delay time. When these
conditions are met, the meter re-zeroes the readout. After the re-zero operation,
the meter resets and continues to auto-zero track.
The auto-zero tracking band should be set large enough to track normal zero
drift, but small enough to not interfere with small process inputs.
For filling operations, the fill rate must exceed the auto-zero tracking rate.
This avoids false tracking at the start of the filling operation.
Fill Rate ≥tracking band
tracking time
Auto-zero tracking is disabled by setting the auto-zero tracking parameter = 0.
ª
«
PAXT: ICE POINT COMPENSATION*
This parameter turns the internal ice point compensation on or off. Normally,
the ice point compensation is on. If using external compensation, set this
parameter to off. In this case, use copper leads from the external compensation
point to the meter. If using Custom TC range, the ice point compensation can
be adjusted by a value in Module 1 when this is yes.
This parameter does not apply for the PAXT.

E
398 www.redlion.net
* Factory Setting can be used without affecting basic start-up.
5.5 MODULE 5 - TOTALIZER (INTEGRATOR) PARAMETERS ()
PARAMETER MENU
ª
«
TOTALIZER DECIMAL POINT*
For most applications, this matches the Input Display Decimal Point
(). If a different location is desired, refer to Totalizer Scale Factor.
0.000 0.00000.000.00
ª
«
TOTALIZER TIME BASE
This is the time base used in Totalizer accumulations. If the Totalizer is being
accumulated through a user input programmed for Batch, then this parameter
does not apply.
ª
«
TOTALIZER SCALE FACTOR*
For most applications, the Totalizer reflects the same decimal point location
and engineering units as the Input Display. In these cases, the Totalizer Scale
Factor is 1.000. The Totalizer Scale Factor can be used to scale the Totalizer to
a different value than the Input Display. Common possibilities are:
1. Changing decimal point location (example tenths to whole)
2. Average over a controlled time frame.
Details on calculating the scale factor are shown later.
If the Totalizer is being accumulated through a user input programmed for
Batch, then this parameter does not apply.
ª
«
TOTALIZER LOW CUT VALUE*
to
to
A low cut value disables Totalizer when the Input Display value falls below
the value programmed.
ª
«
TOTALIZER POWER UP RESET*
Reset buffer
Do not reset buffer
rSt
NO
The Totalizer can be reset to zero on each meter power-up by setting this
parameter to reset.
- seconds (÷ 1)
TOTALIZER HIGH ORDER DISPLAY
When the total exceeds 5 digits, the front panel annunciator TOT flashes. In
this case, the meter continues to totalize up to a 9 digit value. The high order 4
digits and the low order 5 digits of the total are displayed alternately. The letter
“” denotes the high order display. When the total exceeds a 9 digit value, the
Totalizer will show “E . . .” and will stop.
TOTALIZER BATCHING
The Totalizer Time Base and scale factor are overridden when a user input or
function key is programmed for store batch (). In this mode, when the user
input or function key is activated, the Input Display reading is one time added
to the Totalizer (batch). The Totalizer retains a running sum of each batch
operation until the Totalizer is reset. This is useful in weighing operations, when
the value to be added is not based on time but after a filling event.
TOTALIZER USING TIME BASE
Totalizer accumulates as defined by:
Input Display x Totalizer Scale Factor
Totalizer Time Base
Where:
Input Display - the present input reading
Totalizer Scale Factor - 0.001 to 65.000
Totalizer Time Base - (the division factor of )
Example: The input reading is at a constant rate of 10.0 gallons per minute. The
Totalizer is used to determine how many gallons in tenths has flowed.
Because the Input Display and Totalizer are both in tenths of gallons, the
Totalizer Scale Factor is 1. With gallons per minute, the Totalizer Time Base
is minutes (60). By placing these values in the equation, the Totalizer will
accumulate every second as follows:
10.0 x 1.000 = 0.1667 gallon accumulates each second
60
This results in:
10.0 gallons accumulates each minute
600.0 gallons accumulates each hour
TOTALIZER SCALE FACTOR CALCULATION EXAMPLES
1. When changing the Totalizer Decimal Point () location from the
Input Display Decimal Point (), the required Totalizer Scale Factor is
multiplied by a power of ten.
Example:
Input () = 0 Input () = 0.0 Input () = 0.00
(x = Totalizer display is round by tens or hundreds)
2. To obtain an average reading within a controlled time frame, the selected
Totalizer Time Base is divided by the given time period expressed in the same
timing units.
Example: Average temperature per hour in a 4 hour period, the scale factor
would be 0.250. To achieve a controlled time frame, connect an external timer
to a user input programmed for . The timer will control the start (reset)
and the stopping (hold) of the totalizer.
- days (÷ 86400)
- minutes (÷ 60)
- hours (÷ 3600)
The totalizer accumulates (integrates) the Input Display value using one of
two modes. The first is using a time base. This can be used to compute a time-
temperature product. The second is through a user input or function key
programmed for Batch (one time add on demand). This can be used to provide
a readout of temperature integration, useful in curing and sterilization
applications. If the Totalizer is not needed, its display can be locked-out and this
module can be skipped during programming.
0.001x10
0.010
0.10.0
10.00
100.000
Scale
Factor
Totalizer
Totalizer
Scale
Factor
0.0 10
0 1
x10 0.1
x100 0.01
x1000 0.001
Scale
Factor
0.00 10
0.0 1
00.1
x10 0.01
x100 0.001
Totalizer

E
3991-717-767-6511
5.6 MODULE 6 - SETPOINT (ALARM) PARAMETERS ()
PARAMETER MENU
- SELECT SETPOINT
SP-4SP-2
SP-3NO SP-1
- SETPOINT HYSTERESIS
- SETPOINT VALUE
- SETPOINT ACTION
1 to 65000
-19999 to 99999
bANdAb-LO
totHIAU-LO
dE-LOAb-HI
totLoAU-HI
dE-HIOFF
OFF
FLASH
rEv
YES
LAtC2
rEv
0.0 to 3275.0 sec
0.0 to 3275.0 sec
ON
nor
OFF
- SETPOINT ANNUNCIATORS
NO
- STANDBY OPERATION
LAtC1
AUto
- RESET ACTION
nor
- OUTPUT LOGIC
- OFF TIME DELAY
- ON TIME DELAY
5.7 MODULE 7 - SERIAL COMMUNICATIONS PARAMETERS ()
PARAMETER MENU
19200
9600
NO
8
4800
2400
1200
600
EVEN
Odd
7
- PARITY BIT
- DATA BITS
300
- BAUD RATE
YES
0 to 99
NO
SPNt
HILO
tot
INP
tArE6roSS
5.8 MODULE 8 - ANALOG OUTPUT PARAMETERS ()
PARAMETER MENU
0-10
4-20
totHI
LOINP
0-20
- ANALOG TYPE
- ANALOG ASSIGNMENT
HI LO
0.0 to 10.0 sec.
- ANALOG UPDATE TIME
- ANALOG LOW SCALE VALUE -19999 to 99999
-19999 to 99999
Modules 6, 7, and 8 are accessible only with the appropriate plug-in cards installed. A quick overview of each Module is
listed below. Refer to the corresponding plug-in card bulletin for a more detailed explanation of each parameter selection.
This module is for RS232 and RS485.
- ANALOG HIGH SCALE VALUE
- PROBE BURN-OUT ACTION
PAXT ONLY
- PROBE BURN-OUT ACTION
PAXT ONLY
These two options are for the PAXS ONLY.
- PRINT OPTIONS
- METER ADDRESS
- ABBREVIATED PRINTING
Repeat programming for each setpoint.

E
400 www.redlion.net
5.9 MODULE 9 - FACTORY SERVICE OPERATIONS ()
PARAMETER MENU
Enter the desired Display Intensity Level (0-15) by
using the arrow keys. The display will actively dim or
brighten as the levels are changed. This parameter also
appears in Quick Programming Mode when enabled.
DISPLAY INTENSITY LEVEL
ª
«
The meter has been fully calibrated at the factory.
Scaling to convert the input signal to a desired display
value is performed in Module 1. If the meter appears to be
indicating incorrectly or inaccurately, refer to
Troubleshooting before attempting to calibrate the meter.
When recalibration is required (generally every 2 years), it should only be
performed by qualified technicians using appropriate equipment. Calibration
does not change any user programmed parameters. However, it may affect the
accuracy of the input signal values previously stored using the Apply ()
Scaling Style.
Calibration may be aborted by disconnecting power to the meter before
exiting Module 9. In this case, the existing calibration settings remain in effect.
CALIBRATION
ª
«
Before starting, verify that the Input Ranger Jumper is set for the range to be
calibrated. Also verify that the precision signal source is connected and ready.
Allow a 30 minute warm-up period before calibrating the meter. and PAR
can be chosen to exit the calibration mode without any changes taking place.
Then perform the following procedure:
1. Use the arrow keys to display and press PAR.
2. Choose the range to be calibrated by using the arrow keys and press PAR.
3. When the zero range limit appears on the display, apply the appropriate:
- Voltage ranges: dead short applied
- Current ranges: open circuit
- Resistance ranges: dead short with current source connected
4. Press PAR and will appear on the display for about 10 seconds.
5. When the top range limit appears on the display, apply the appropriate:
- Voltage ranges: top range value applied (The 300 V range is the exception.
It is calibrated with a 100 V signal.)
- Current ranges: top range value
- Resistance ranges: top range value (The ohms calibration requires
connection of the internal current source through a resistance substitution
device and the proper voltage range selection.)
6. Press PAR and will appear on the display for about 10 seconds.
7. When appears, press PAR twice.
8. If the meter is not field scaled, then the input display should match the value
of the input signal.
9. Repeat the above procedure for each input range to be calibrated.
WARNING: Calibration of this meter requires a signal source with an
accuracy of 0.01% or better and an external meter with an accuracy
of 0.005% or better. Resistance inputs require a resistance
substitution device with an accuracy of 0.01% or better.
WARNING: Calibration of this meter requires a signal source with an
accuracy of 0.01% or better and an external meter with an accuracy
of 0.005% or better.
PAXD - Input Calibration PAXH - Input Calibration
PAXP - Input Calibration
Before starting, verify that the precision signal source is connected to the
correct terminals and ready. Allow a 30 minute warm-up period before
calibrating the meter. and PAR can be chosen to exit the calibration mode
without any changes taking place.
Then perform the following procedure:
1. Use the arrow keys to display and press PAR.
2. Choose the range to be calibrated by using the arrow keys and press PAR.
( and PAR can be chosen to exit the calibration mode without any changes
taking place.)
3. When the zero range limit appears on the display, apply the appropriate:
- Voltage range: dead short applied
- Current range: open circuit
4. Press PAR and will appear on the display for about 10 seconds.
5. When the top range limit appears on the display, apply the appropriate:
- Voltage range: 10 VDC
- Current range: 20 mADC
6. Press PAR and will appear on the display for about 10 seconds.
7. When appears, press PAR twice.
8. If the meter is not field scaled, then the input display should match the value
of the input signal.
9. Repeat the above procedure for each input range to be calibrated.
WARNING: In the PAXH, DC signals are used to calibrate the AC
ranges. Calibration of the PAXH requires a DC voltmeter with an
accuracy of 0.025% and a precision DC signal source capable of:
1. +1% of full scale, DC
2. -1% of full scale, DC
3. +100% of full scale, DC; (300 V range = +100 V calibration)
4. -100% of full scale, DC; (300 V range = -100 V calibration)
Before starting, verify the Input Range and Signal Jumpers are set for the
range to be calibrated and the Couple jumper is installed for DC. Also verify the
DC signal source is connected and ready. Allow a 30 minute warm-up period
before calibrating the meter. and PAR can be chosen to exit the calibration
mode without any changes taking place.
Then perform the following procedure:
1. Press the arrow keys to display and press PAR.
2. The meter displays . Use the arrow keys to select the range that matches
the Signal Jumper setting. Press PAR.
3. Apply the signal matching the meter prompt.
4. Press PAR and will appear on the display, wait for next prompt.
5. Repeat steps 3 and 4 for the remaining three prompts.
6. When appears, press PAR twice.
7. If the meter is scaled to show input signal, the Input Display should match
the value of the input signal in the Display Mode.
8. Repeat the above procedure for each range to be calibrated or to recalibrate
the same range. It is only necessary to calibrate the input ranges being used.
9. When all desired calibrations are completed, remove the external signal
source and restore original configuration and jumper settings. If AC is being
measured, continue with AC Couple Offset Calibration.
ª
«
RESTORE FACTORY DEFAULTS
Use the arrow keys to display and press PAR.
The meter will display and then return to .
Press DSP key to return to Display Mode. This will
overwrite all user settings with the factory settings.

E
4011-717-767-6511
It is recommended that Input Calibration be performed first.
1. With meter power removed, set the Input Range Jumper for 20 V, the Couple
Jumper for DC, and set the Signal Jumper for voltage by removing the jumper.
2. Connect a wire (short) between Volt (terminal 6) and COMM (terminal 4).
3. Apply meter power.
4. In Module 1, program as follows: Range: ; Couple: ; Decimal Point:
; Round: ; Filter: ; Band: ; Points: ; Style: ; INP1: ; DSP1:
; INP2: ; DSP2:
5. In Module 4, program as follows: Hi-t: ; Lo-t:
6. Press PAR then DSP to exit programming and view the Input Display.
7. The readout displays the DC coupled zero input, record the value.
8. Remove the meter power and set the Couple Jumper to AC by removing the
jumper.
9. Maintaining the short between terminals 4 and 6, reapply the meter power.
10. Keeping all programming the same, view the Input Display.
11. The readout now displays the AC coupled zero input, record the value.
12. In Module 9, Use the arrow keys to display and press PAR.
13. Press the down arrow key twice to and press PAR.
14. Calculate the offset using the following formula:
= AC coupled reading (step 11) - DC coupled reading (step 7)
15. Use the arrow keys to enter the calculated .
16. Press PAR three times, to exit programming.
17. Remove the meter power and remove the short from terminals 4 and 6.
18. Restore the original jumper and configuration settings.
AC Couple Offset Calibration - PAXH
PAXS - Input Calibration
PAXT - Input Calibration
WARNING: Calibration of this meter requires a signal source with an
accuracy of 0.01% or better and an external meter with an accuracy of
0.005% or better.
Before starting, connect -SIG (terminal 4) to COMM (terminal 5). This
allows a single ended signal to be used for calibration. Connect the calibration
signal to +SIG (terminal 3) and -SIG (terminal 4). Verify the Input Range
jumper is in the desired position. Allow a 30 minute warm-up period before
calibrating the meter. and PAR can be chosen to exit the calibration mode
without any changes taking place. Perform the following procedure:
1. Press the arrow keys to display and press PAR.
2. Choose the range to be calibrated by using the arrow keys and press PAR.
3. When the zero range limit appears on the display, apply 0 mV between +SIG
and -SIG.
4. Press PAR and ---- will appear, wait for next prompt.
5. When the top range limit appears on the display, apply the corresponding
+SIG and -SIG voltage (20 mV or 200 mV).
6. Press PAR and ---- will appear, on the display for about 10 seconds.
7. When appears, press PAR twice to exit programming.
8. Repeat the above procedure for each range to be calibrated or to recalibrate
the same range. It is only necessary to calibrate the input ranges being used.
9. When all desired calibrations are completed, remove -SIG to COMM
connection and external signal source.
10. Restore original configuration and jumper settings.
100 OHM RTD Range Calibration
1. Set the Input Range Jumper to 100 ohm.
2. Use the arrow keys to display and press PAR. Then choose
and press PAR.
3. At , apply a direct short to input terminals 3, 4 and 5 using a three wire
link. Wait 10 seconds, then press PAR.
4. At , apply a precision resistance of 300 ohms (with an accuracy of
0.01% or better) using a three wire link, to terminals 3, 4 and 5. Wait 10
seconds, press PAR.
5. Connect the RTD, return to the Display Mode and verify the input reading
(with 0 Display Offset) is correct. If not correct repeat calibration.
THERMOCOUPLE Range Calibration
1. Use the arrow keys to display and press PAR. Then choose and
press PAR.
2. At , apply a dead short or set calibrator to zero to input terminals 4 and
5. Wait 10 seconds, then press PAR.
3. At , apply 50.000 mV input signal (with an accuracy of 0.01% or
better) to input terminals 4 and 5. Wait 10 seconds, then press PAR.
4. Return to the Display Mode.
5. Continue with Ice Point Calibration.
ICE POINT Calibration
1. Remove all option cards or invalid results will occur.
2. The ambient temperature must be within 20°C to 30°C.
3. Connect a thermocouple (types T, E, J, K, or N only) with an accuracy of 1°C
or better to the meter.
4. Verify the readout Display Offset is 0, Temperature Scale is °C, Display
Resolution is 0.0, and the Input Range is set for the connected thermocouple.
5. Place the thermocouple in close thermal contact to a reference thermometer
probe. (Use a reference thermometer with an accuracy of 0.25°C or better.)
The two probes should be shielded from air movement and allowed sufficient
time to equalize in temperature. (A calibration bath could be used in place of
the thermometer.)
6. In the Normal Display mode, compare the readouts.
7. If a difference exists then continue with the calibration.
8. Enter Module 9, use the arrow keys to display and press PAR. Then
choose and press PAR.
9. Calculate a new Ice Point value using: existing Ice Point value + (reference
temperature - Display Mode reading). All values are based on °C.
10. Enter the new Ice Point value.
11. Return to the Display Mode and verify the input reading (with 0 Display
Offset) is correct. If not correct repeat steps 8 through 10.
Warning: Calibration of this meter requires precision instrumentation
operated by qualified technicians. It is recommended that a
calibration service calibrates the meter.
Before selecting any of the calibration procedures, the input to the meter
must be at 0 mV or 0 ohms. Set the digital filer in Module 1 to 1 second. Allow
a 30 minute warm-up period before calibrating the meter. The and PAR can
be chosen to exit calibration mode without any changes taking place.
10 OHM RTD Range Calibration
1. Set the Input Range Jumper to 10 ohm.
2. Use the arrow keys to display and press PAR. Then choose
and press PAR.
3. At , apply a direct short to input terminals 3, 4 and 5 using a three wire
link. Wait 10 seconds, then press PAR.
4. At , apply a precision resistance of 15 ohms (with an accuracy of 0.01%
or better) using a three wire link, to input terminals 3, 4 and 5. Wait 10
seconds, then press PAR.
5. Connect the RTD, return to the Display Mode and verify the input reading
(with 0 Display Offset) is correct. If not correct repeat calibration.
ANALOG OUTPUT CARD CALIBRATION
Before starting, verify that the precision voltmeter (voltage output) or current
meter (current output) is connected and ready. Perform the following procedure:
1. Use the arrow keys to display and press PAR.
2. Use the arrow keys to choose and press PAR.
3. Using the chart below, step through the five selections to be calibrated. At
each prompt, use the PAX arrow keys to adjust the external meter display to
match the selection being calibrated. When the external reading matches, or
if this range is not being calibrated, press PAR.
4. When appears remove the external meters and press PAR twice.
SELECTION EXTERNAL METER ACTION
0.00 Adjust if necessary, press PAR
4.00 Adjust if necessary, press PAR
20.00 Adjust if necessary, press PAR
0.00 Adjust if necessary, press PAR
10.00 Adjust if necessary, press PAR

E
402 www.redlion.net
TROUBLESHOOTING
CHECK: Active (lock-out) user input
ENTER: Security code requested
PROGRAM: Module 4 as Hi-t: 0.0 LO-t: 3271.1 (to disable zero chop feature)
PRESS: Reset KEY (If cannot clear contact factory.)ERROR CODE (Err 1-4)
CHECK: Corresponding plug-in card installationMODULES or PARAMETERS NOT ACCESSIBLE
INCREASE: Module 1 filtering, rounding, input range
CHECK: Wiring is per EMC installation guidelines
JITTERY DISPLAY
CHECK: Module 1 programming, Input Range Jumper position, input connections, input signal level“ULUL” in DISPLAY (SIGNAL LOW)
CHECK: Module 1 programming, Input Range Jumper position, input connections, input signal level“OLOL” in DISPLAY (SIGNAL HIGH)
CHECK: Module 1 programming, Input Range Jumper position, input connections, input signal level,
Module 4 Display Offset is zero, press DSP for Input Display
PERFORM: Module 9 Calibration (If the above does not correct the problem.)
INCORRECT INPUT DISPLAY VALUE
CHECK: Module 3 programmingMAX, MIN, TOT LOCKED-OUT
PROGRAM LOCKED-OUT
CHECK: Power level, power connectionsNO DISPLAY
REMEDIESPROBLEM
DISPLAY ZERO’S AT LEVELS BELOW 1% OF RANGE
For further assistance, contact technical support at the appropriate company numbers listed.
PARAMETER VALUE CHART Programmer ________________ Date ________
PAX MODEL NUMBER ________ Meter# _____________ Security Code __________
1-INP Signal Input Parameters
PAXT: TEMPERATURE SCALE
DISPLAY PARAMETER FACTORY
SETTING
SCALE
tyPE
rAN6E
PAXT: INPUT TYPE
MODEL DEPENDENT
°F
tc-
dECPt
COUPL
* DISPLAY RESOLUTION
PAXH: INPUT COUPLE
0
AC
OFFSt
USER SETTING
round
PAXT: DISPLAY OFFSET
DISPLAY ROUNDING INCREMENT
0
1
FILtr FILTER SETTING - PAXH 0.5 1.0
bANd 10
PtS
ICE
SCALING POINTS
PAXT: ICE POINT SLOPE
2
0.00
INP 1
StYLE
* INPUT VALUE 1
SCALING STYLE - NOT PAXT
0.000
KEY
dSP 1 * DISPLAY VALUE 1 0
INP 2 * INPUT VALUE 2 1.000
dSP 2 * DISPLAY VALUE 2 1000
dSP 4
dSP 5
dSP 3
INP 4
INP 5
INP 3
* DISPLAY VALUE 4
* DISPLAY VALUE 5
* DISPLAY VALUE 3
* INPUT VALUE 4
* INPUT VALUE 5
* INPUT VALUE 3
0
0
0
0.000
0.000
0.000
* Decimal point location is model and programming dependent.
0.000
0
0.000
0
0.000
0
0.000
0
0.000
0
0
0.000
0.000
0
0
0.000
0
0.000
0
0.000
0
0.000
* INPUT VALUE 7
* DISPLAY VALUE 12
* INPUT VALUE 9
* DISPLAY VALUE 14
* INPUT VALUE 8
* DISPLAY VALUE 13
* INPUT VALUE 6
* DISPLAY VALUE 11
* INPUT VALUE 10
* DISPLAY VALUE 15
* DISPLAY VALUE 7
* INPUT VALUE 13
* INPUT VALUE 11
* DISPLAY VALUE 9
* DISPLAY VALUE 16
* INPUT VALUE 15
* DISPLAY VALUE 8
* INPUT VALUE 14
* DISPLAY VALUE 6
* INPUT VALUE 12
* DISPLAY VALUE 10
* INPUT VALUE 16
INP 7
dSP 12
INP 9
dSP 14
INP 8
dSP 13
INP 6
dSP 11
INP 10
dSP 15
dSP 7
INP 13
INP 11
dSP 9
dSP 16
INP 15
dSP 8
INP 14
dSP 6
INP 12
dSP 10
INP 16
USER SETTING
FACTORY
SETTING
PARAMETERDISPLAY
FILTER ENABLE BAND - PAXH 0.020

E
4031-717-767-6511
5-tOt Totalizer (Integrator) Parameters
8-Out Analog Output Parameters
7-SrL Serial Communication Parameters
DISPLAY PARAMETER FACTORY
SETTING USER SETTING
dECPt * TOTALIZER DECIMAL POINT 0
tbASE TOTALIZER TIME BASE
SCFAC TOTALIZER SCALE FACTOR 1.000
Locut * TOTALIZER LOW CUT VALUE -19999
P-UP TOTALIZER POWER-UP RESET NO
DISPLAY PARAMETER FACTORY
SETTING USER SETTING
bAUd BAUD RATE 9600
dAtA DATA BIT 7
PAr PARITY BIT Odd
Addr METER ADDRESS 0
tArE
6ross
Opt
Abrv
PAXS: PRINT GROSS OFFSET
ENTER PRINT OPTIONS
ABBREVIATED PRINTING
NO
NO
NO
YES
INP PRINT INPUT VALUE YES
tot PRINT TOTAL VALUE YES
HILO PRINT MAX & MIN VALUES YES
SPNt NO
PRINT SETPOINT VALUES
PARAMETER FACTORY
SETTING USER SETTING
tYPE 4-20
ASIN ANALOG ASSIGNMENT INP
AN-LO * ANALOG LOW SCALE VALUE 0
AN-HI * ANALOG HIGH SCALE VALUE 1000
burn
udt
PAXT: PROBE BURN-OUT ACTION
ANALOG UPDATE TIME
LO
0.0
ANALOG TYPE
DISPLAY
400
OFF
nor
NO
AUto
nor
0.0
0.0
2
400
300
OFF
SP-4
USER SETTING
OFF
nor
NO
AUto
nor
0.0
0.0
2
300
OFF
SP-3
FACTORY
SETTING
USER SETTING
FACTORY
SETTING
200
OFF
nor
NO
AUto
nor
0.0
0.0
2
200
100
* SETPOINT VALUE (alternate)
OFF
SP-2
USER SETTING
OFF
nor
SETPOINT ANNUNCIATORS
brn-n
LIt-n
NO
STANDBY OPERATION
Stb-n
AUto
RESET ACTION
rSt-n
nor
OUTPUT LOGIC
out-n
0.0
OFF TIME DELAY
tOF-n
0.0
ON TIME DELAY
tON-n
2
* SETPOINT HYSTERESIS
HYS-n
100
* SETPOINT VALUE (main)
SP-n
OFF
SETPOINT ACTION
ACt-n
SP-1
FACTORY
SETTING
USER SETTING
FACTORY
SETTING
PARAMETERDISPLAY
6-SPt Setpoint (Alarm) Parameters
9-FCS Factory Setting Parameters
Select alternate list to program these values.
4-SEC Secondary Function Parameters
FACTORY
SETTING USER SETTINGPARAMETERDISPLAY
0
0.02
0.00
OFF
ON
PAXS: AUTO-ZERO DELAY
PAXS: AUTO-ZERO BAND
DISPLAY OFFSET - NOT PAXT
UNITS LABEL BACKLIGHT - PAXT ON
At-t
At-b
OFFSt
b-LIt
ICE
2
DISPLAY UPDATE TIME
dSP-t
0.0
MIN CAPTURE DELAY TIME
LO-t
0.0
MAX CAPTURE DELAY TIME
HI-t
PAXT: ICE POINT COMPENSATION
* Decimal point location is model and programming dependent.
3
DISPLAY INTENSITY LEVEL
d-LEv
USER SETTING
FACTORY
SETTING
PARAMETERDISPLAY
PAXT: PROBE BURN-OUT ACTION
2-FNC User Input and Function Key Parameters
DISPLAY PARAMETER USER SETTING
FACTORY
SETTING
USr-1 USER INPUT 1 NO
USr-2 USER INPUT 2 NO
USr-3 USER INPUT 3 NO
F1 FUNCTION KEY 1 NO
F2 FUNCTION KEY 2 NO
rSt RESET KEY NO
Sc-F1 2nd FUNCTION KEY 1 NO
Sc-F2 2nd FUNCTION KEY 2 NO
3-LOC Display and Program Lockout Parameters
TOTAL DISPLAY LOCKOUT
MIN DISPLAY LOCKOUT
0
SECURITY CODE
CodE
LOC
LOC
SETPOINT 2 ACCESS
SETPOINT 4 ACCESS
SP-2
SP-4
LOC
LOC
SETPOINT 1 ACCESS
SETPOINT 3 ACCESS
SP-1
SP-3
LOCtOt
LOC
LOC
MAX DISPLAY LOCKOUT
LO
HI
FACTORY
SETTING USER SETTINGPARAMETERDISPLAY
PAXS: PRINT TARE OFFSET

E
404 www.redlion.net
PAX PROGRAMMING QUICK OVERVIEW
PAXT
ONLY

E
4051-717-767-6511
MODEL PAXH - AC TRUE RMS VOLT AND CURRENT
This is a brief overview of the PAXH. For complete specifications and programming information, see the
PAX Analog Input Panel Meters Bulletin starting on page 378.
5-DIGIT 0.56" RED SUNLIGHT READABLE OR STANDARD
GREEN DISPLAY
FOUR VOLTAGE RANGES (300 VAC Max)
FIVE CURRENT RANGES (5 A Max)
ACCEPTS AC OR DC COUPLED INPUTS
THREE WAY ISOLATION: POWER, INPUT AND OUTPUTS
FOUR SETPOINT ALARM OUTPUTS (w/OPTION CARD)
COMMUNICATION AND BUS CAPABILITIES (w/OPTION CARD
PAXH SPECIFICATIONS
INPUT RANGES:
Isolation To Option Card Commons and User Input Commons: 125 Vrms
Isolation To AC Power Terminals: 250 Vrms
*Conditions for accuracy specification:
- 20 minutes warmup
- 18-28°C temperature range, 10-75% RH non-condensing
- 50 Hz - 400 Hz sine wave input
- 1% to 100% of range
- Add 0.1% reading + 20 counts error over 0-50°C range
- Add 0.2% reading + 10 counts error for crest factors up to 3, add 1%
reading up to 5
- Add 0.5% reading + 10 counts of DC component
- Add 1% reading + 20 counts error over 20 Hz to 10 KHz range
** Non-repetitive surge rating: 15 A for 5 seconds
*** Inputs are direct coupled to the input divider and shunts. Input signals
with high DC component levels may reduce the usable range.
MAX CREST FACTOR (VP/VRMS): 5 @ Full Scale Input
INPUT COUPLING: AC or AC and DC
INPUT CAPACITANCE: 10 pF
COMMON MODE VOLTAGE: 125 VAC working
COMMON MODE REJECTION: (DC to 60 Hz) 100 dB
INPUT
RANGE ACCURACY* MAX DC
BLOCKING
IMPEDANCE
(60 Hz)
MAX
CONTINUOUS
OVERLOAD
RESOLUTION
2 mA 0.1% of reading
+2 μA±50 mA
111 ohm 50 mA 0.1 μA
20 mA 0.1% of reading
+20 μA±150 mA
11.1 ohm 150 mA 1 μA
200 mA 0.1% of reading
+0.2 mA ±500 mA
1.1 ohm 500 mA 10 μA
5 A 0.5% of reading
+5 mA ±7 A***
0.02 ohm 7 A** 1 mA
200 mV 0.1% of reading
+0.4 mV ±10 V
686 Kohm 30 V 0.01 mV
2 V 0.1% of reading
+2 mV ±50 V
686 Kohm 30 V 0.1 mV
20 V 0.1% of reading
+20 mV ±300 V
686 Kohm 300 V 1 mV
300 V 0.2% of reading
+0.3 V ±300 V***
686 Kohm 300 V 0.1 V
200 μA0.1% of reading
+0.4 μA±15 mA
1.11 Kohm 15 mA 0.01 μA
C
C
US LISTED
US LISTED
UL
R
IND. CONT. EQ.
51EB

E
406 www.redlion.net
zDUAL RANGE, 4 to 20 mA OR 10 to 50 mA
z3½-DIGIT, 0.6" (15.2 mm) HIGH DIGITS
zPOSITIVE IMAGE TRANSFLECTIVE LCD WITH RED BACKLIGHT
OR POSITIVE IMAGE REFLECTIVE LCD (CUB4LP)
zPOSITIVE IMAGE TRANSFLECTIVE LCD WITH RED BACKLIGHT
OR NEGATIVE IMAGE TRANSMISSIVE WITH RED OR
YELLOW/GREEN BACKLIGHT (CUB4CL)
zSPAN AND OFFSET CAPABILITY
zNEGATIVE AND OVERRANGE INDICATION
zSELECTABLE DECIMAL POINT POSITION
zNEMA 4X/IP65 SEALED FRONT PANEL BEZEL
zFITS DIN STANDARD CUT-OUT 2.68" (68 mm) X 1.30" (33 mm)
DESCRIPTION
The CUB4LP and CUB4CL are additions to the CUB4 product line. The
CUB4LP uses a 4 to 20 mA or a 10 to 50 mA input signal as operating power.
The input signal is also used to power the backlighting on the CUB4LP40 unit.
The CUB4CL uses a 4 to 20 mA or a 10 to 50 mA input signal to power the unit.
An external power supply is used to power the CUB4CL backlighting to provide
a brighter, more consistent display and a lower compliance voltage.
The units have a 3½-digit LCD display with 0.6" (15.2 mm) high digits and
a DIP switch selectable decimal point. The CUB4LP display is available in
positive image reflective (dark digits, reflective background) or positive image
transflective (dark digits, illuminated background) with red backlighting. The
CUB4CL display is available in positive image transflective (dark digits,
illuminated background) with red or yellow/green backlighting or negative
image transmissive (illuminated digits, dark background) with red or
yellow/green backlighting.
The ability to scale the display allows indication in any desired unit of
measurement such as temperature, pressure, humidity, fluid flow, etc. The unit
is calibrated at the factory with 0.0 displayed @ 4 mA input and 100.0 displayed
@ 20 mA input.
The units are contained in a lightweight, high impact plastic case with a clear
viewing window. When properly installed, the sealed front panel meets NEMA
4X/IP65 specifications for wash-down and dusty environments.
SAFETY SUMMARY
All safety related regulations, local codes and instructions that appear in the
manual or on equipment must be observed to ensure personal safety and to
prevent damage to either the instrument or equipment connected to it. If
equipment is used in a manner not specified by the manufacturer, the protection
provided by the equipment may be impaired.
WARNING - EXPLOSION HAZARD - SUBSTITUTION
OF COMPONENTS MAY IMPAIR SUITABILITY FOR
CLASS I, DIVISION 2 / CLASS II, DIVISION 2 / CLASS III, DIVISION 2
SPECIFICATIONS
1. DISPLAY: 3½-digit (-1999 to 1999), 0.6" (15.2 mm) high digits.
The CUB4LP is available with a positive image reflective LCD or a red
backlit positive image transflective LCD. The intensity of the backlighting
will vary with the input signal.
The CUB4CL is available with a positive image transflective LCD with red
or yellow/green backlighting or a negative image transmissive with red or
yellow/green backlight.
A minus sign is displayed when the indicator is adjusted for a negative offset.
Overrange: Overrange is indicated by a “1” in the most significant digit and
the blanking of the three least significant digits.
2. EXTERNAL BACKLIGHT POWER: (CUB4CL only)
9 - 28 VDC, @ 35 mA typ., 50 mA max. Power Supplies must be Class 2
(NEC) or SELV rated. Above 26 VDC, derate the operating temperature to
50°C.
3. DECIMAL POINTS: Three DIP switch selectable, decimal point positions
allow the display to be read in tenths, hundredths or thousandths.
MODEL CUB4LP - LOOP POWERED PROCESS INDICATOR
MODEL CUB4CL - CURRENT LOOP INDICATOR
DIMENSIONS In inches (mm) Note: Recommended minimum clearance (behind the panel) for
mounting clip installation is 2.15" (54.6) H x 3.00" (76.2) W.
CAUTION: Risk of Danger.
Read complete instructions prior to
installation and operation of the unit.
FOR USE IN HAZARDOUS LOCATIONS:
Class I, Division 2, Groups A, B, C, and D
Class II, Division 2, Groups F and G
Class III, Division 2

E
4071-717-767-6511
INSTALLATION
When properly installed, the CUB4LP/CL meets
NEMA 4X/IP65 requirements for indoor use. The
units are intended to be mounted into an enclosed
panel. A sponge rubber gasket, mounting clip, two
screws, and nut fasteners are provided to install and
seal the unit in the panel cutout.
Installation Environment
The unit should be installed in a location that does
not exceed the maximum operating temperature and
provides good air circulation. Placing the unit near
devices that generate excessive heat should be
avoided.
The bezel should be cleaned only with a soft
cloth and neutral soap product. Do NOT use
solvents.
Continuous exposure to direct sunlight may
accelerate the aging process of the bezel.
The following procedure assures proper installation:
1. Cut the panel opening to the specified dimensions. Remove
burrs and clean the panel opening.
2. Slide nut fastener into slot on mounting clip and then insert
mounting screw through nut on both sides of mounting clip. The tip
of mounting screw should not project through hole on clip.
3. Slide the panel gasket over the rear of the unit to the back of the bezel.
Install CUB4LP/CL unit through panel cutout.
4. Slide mounting clip over rear of unit until the clip is against back of panel.
The mounting clip and CUB4LP/CL housing have a latching feature to hold
the unit in place until tightened.
Note: Hold the CUB4LP/CL front bezel in place when sliding the mounting
clip into position.
5. Alternately tighten each mounting screw to ensure uniform gasket pressure.
Visually inspect the gasket for proper seal. The gasket should be compressed
to approximately 75 to 80% of its original thickness.
(Recommended torque is 28 to 36 in-oz.)
6. If the gasket is not adequately compressed and the mounting screws cannot be
tightened any further, loosen the mounting screws and insure that the clip is
latched as closely as possible to the panel.
7. Repeat Step #6 for tightening the mounting screws.
SPECIFICATIONS (Cont’d)
4. MAXIMUM VOLTAGE DROP:
3.2 VDC for CUB4LP00
4.0 VDC for CUB4LP40
3.2 VDC for CUB4CL all models
5. EQUIVALENT RESISTANCE:
CUB4LP00: 800 Ωmax. @ 4 mA; 160 Ωmax. @ 20 mA
320 Ωmax. @ 10 mA; 65 Ωmax. @ 50 mA
CUB4LP40: 1000 Ωmax. @ 4 mA; 200 Ωmax. @ 20 mA
400 Ωmax. @ 10 mA; 80 Ωmax. @ 50 mA
CUB4CL (all models): 800 Ωmax. @ 4 mA; 160 Ωmax. @ 20 mA
320 Ωmax. @ 10 mA; 65 Ωmax. @ 50 mA
6. MAXIMUM ALLOWABLE INPUT CURRENT: 100 mA
7. SCALING RANGE:
Span: Two potentiometers provide a coarse and fine span adjustment. Span
range = 0 to 2000.
Offset: Two potentiometers provide a coarse and fine zero offset adjustment.
Offset range = -1999 to 1999.
8. LINEARITY: (@ 23°C, Less than 85% RH) ±(0.1% + 1 digit).
9. READING RATE: 2.5 per second, nominal.
10. RESPONSE TIME: 1.5 seconds to settle for a step change.
11. NORMAL MODE REJECTION: 60 dB 50/60 Hz
12. TEMPERATURE EFFECTS:
Span Temperature Coefficient: 100 PPM/°C
Offset Temperature Coefficient: 0.2 digits/°C
13. CONSTRUCTION: High impact plastic case with clear viewing window.
(Panel gasket and mounting clips included.) This unit is rated for NEMA
4X/IP65 indoor use. Installation Category I, Pollution Degree 2
14. CERTIFICATIONS AND COMPLIANCES:
SAFETY
UL Listed, File #E184589, UL1604, CSA 22.2 No. 213-M1987
LISTED by Und. Lab. Inc. to U.S. and Canadian safety standards
Type 4X Indoor Enclosure rating (Face only), UL50
IEC 61010-1, EN 61010-1: Safety requirements for electrical
equipment for measurement, control and laboratory use, Part 1.
IP65 Enclosure rating (Face only), IEC 529
ELECTROMAGNETIC COMPATIBILITY
Notes:
1. Self-recoverable loss of performance during EMI disturbance at 10 V/m:
Process Signal may deviate during EMI disturbance.
For operation without loss of performance:
Unit is mounted in a metal enclosure (Buckeye SM7013-0 or equivalent)
connected to earth ground.
2. Self-recoverable loss of performance during EMI disturbance at 10 Vrms.
Process signal may deviate during EMI disturbance.
For operation without loss of performance:
Install 1 ferrite core, RLC #FCOR0000 or equivalent, to signal cable at
the unit.
Refer to the EMC Installation Guidelines of this bulletin for additional
information.
15. ENVIRONMENTAL CONDITIONS:
Operating Temperature: 0°to 60°C
(Derate backlight voltage to 26 VDC above 50°C.)
Storage Temperature: -40°to 80°C
Operating and Storage Humidity: 85% max. (non-condensing) from 0°C to
60°C.
Vibration According to IEC 68-2-6: Operational 5 to 500 Hz, in X, Y, Z
direction for 1.5 hours, 5g’s.
Shock According to IEC 68-2-27: Operational 30 g, 11 msec in 3 directions.
Altitude: Up to 2000 meters
16. WEIGHT: 3.3 oz. (93.5 g)
Power mains class B
Enclosure class BEN 55011RF interference
Emissions to EN 50081-1
Level 4; 30 A/mEN 61000-4-8Power frequency magnetic fields
150 KHz - 80 MHz
Level 3; 10 V/rms2
EN 61000-4-6RF conducted interference
Level 3; 2 Kv power
Level 4; 2 Kv I/OEN 61000-4-4Fast transients (burst)
80 MHz - 1 GHz
Level 3; 10 V/m1
EN 61000-4-3Electromagnetic RF fields
Level 3; 8 Kv air
Level 2; 4 Kv contactEN 61000-4-2Electrostatic discharge
Immunity to EN 50082-2

E
408 www.redlion.net
WIRING CONNECTIONS
All conductors should meet voltage and current ratings for
each terminal. Also cabling should conform to appropriate
standards of good installation, local codes and regulations. It is
recommended that power supplied to the unit (AC or DC) be
protected by a fuse or circuit breaker.
The electrical connections are made via screw-clamp terminals
located on the back of the unit. When wiring the unit, use the
label to identify the wire position with the proper function. Strip
the wire, leaving approximately ¼" of bare wire (stranded wires
should be tinned with solder). Insert the wire into the screw-
clamp terminal and tighten the screw until the wire is clamped
tightly. Each terminal can accept up to two #14 AWG wires.
EMC INSTALLATION GUIDELINES
Although this unit is designed with a high degree of immunity to
ElectroMagnetic Interference (EMI), proper installation and wiring methods
must be followed to ensure compatibility in each application. The type of the
electrical noise, source or coupling method into the unit may be different for
various installations. Cable length, routing and shield termination are very
important and can mean the difference between a successful installation or a
troublesome installation. Listed below are some EMC guidelines for successful
installation in an industrial environment.
1. Use shielded (screened) cables for all Signal and Control inputs. The shield
(screen) pigtail connection should be made as short as possible. The
connection point for the shield depends somewhat upon the application.
Listed below are the recommended methods of connecting the shield, in order
of their effectiveness.
a. Connect the shield only at the panel where the unit is mounted to earth
ground (protective earth).
b. Connect the shield to earth ground at both ends of the cable, usually when
the noise source frequency is above 1 MHz.
c. Connect the shield to common of the unit and leave the other end of the
shield unconnected and insulated from earth ground.
2. Never run Signal or Control cables in the same conduit or raceway with AC
power lines, conductors feeding motors, solenoids, SCR controls, and
heaters, etc. The cables should be run in metal conduit that is properly
grounded. This is especially useful in applications where cable runs are long
and portable two-way radios are used in close proximity or if the installation
is near a commercial radio transmitter.
3. Signal or control cables within an enclosure should be routed as far away as
possible from contactors, control relays, transformers, and other noisy
components.
4. In extremely high EMI environments, the use of external EMI suppression
devices, such as ferrite suppression cores, is effective. Install them on Signal
and Control cables as close to the unit as possible. Loop the cable through the
core several times or use multiple cores on each cable for additional protection.
Install line filters on the power input cable to the unit to suppress power line
interference. Install them near the power entry point of the enclosure. The
following EMI suppression devices (or equivalent) are recommended:
Ferrite Suppression Cores for signal and control cables:
Fair-Rite # 0443167251 (RLC #FCOR0000)
TDK # ZCAT3035-1330A
Steward #28B2029-0A0
Line Filters for input power cables:
Schaffner # FN610-1/07 (RLC #LFIL0000)
Schaffner # FN670-1.8/07
Corcom #1VR3
Note: Reference manufacturer’s instructions when installing a line filter.
5. Long cable runs are more susceptible to EMI pickup than short cable runs.
Therefore, keep cable runs as short as possible.
CUB4LP/CL SIGNAL INPUT
The current range is selected by setting DIP switch S1 to the OFF position for
a 4 to 20 mA input or ON for a 10 to 50 mA input. Attach the signal wires to
terminals 3 (SIG-) and 4 (SIG+) observing the correct polarity. The (SIG-)
signal input circuit is not reverse polarity protected.
Backlight Power (CUB4CL only)
Attach a 9 to 28 VDC supply to terminals 1 (COM) and 2 (V+) to power the
backlight. Terminals 3 (SIG-) and 1 (COM) are AC coupled with a capacitor.
This limits the isolation between these terminals to 50 VDC maximum.
OFFSET ADJUSTMENTS
The minimum currents are not zero based with 4 to 20 mA and 10 to 50 mA
signals. To obtain a zero minimum display reading, the display must be offset.
The display on the CUB4LP/CL can be offset by adjusting the Coarse and Fine
Offset pots.
SPAN ADJUSTMENTS
Span is defined as the numerical range that the display traverses, disregarding
the decimal point, when the input signal is varied from minimum to maximum
(4 to 20 mA or 10 to 50 mA). For example; if a unit is to display 250 @ 4 mA
and 1000 @ 20 mA, the span is 750 (the difference between 250 and 1000). Had
the minimum display been -250, the span would be 1250 (1000 - (-250) = 1250).
The CUB4LP/CL can be set to operate over a wide span range by adjusting the
Coarse and Fine Span adjustment pots. The Coarse Span pot is used to get the
display to within a couple of counts of the desired reading, and the Fine Span
pot is used to adjust for the exact reading.
WARNING - EXPLOSION HAZARD - DO NOT DISCONNECT
EQUIPMENT UNLESS POWER HAS BEEN SWITCHED OFF
OR THE AREA IS KNOWN TO BE NON-HAZARDOUS.
THIS EQUIPMENT IS SUITABLE FOR USE IN:
Class I, Division 2, Groups A, B, C, and D
Class II, Division 2, Groups F and G
Class III, Division 2 or Non Hazardous locations.

E
4091-717-767-6511
ORDERING INFORMATION
CALIBRATING THE DISPLAY
Calibrating the CUB4LP/CL requires either an accurate adjustable constant
current supply or the CUB4LP/CL can be installed and scaled with the process
sensor connected to the CUB4LP/CL. To calibrate the unit, proceed as follows.
1. Set DIP switching for the desired current range.
2. Select the desired decimal point position.
3. Apply the minimum input signal to the CUB4LP/CL and adjust the COARSE
OFFSET to display the approximate desired minimum value.
4.Apply the maximum input signal to the CUB4LP/CL and adjust the COARSE
SPAN to display the approximate desired maximum value.
5. Repeat steps 3 and 4 until the minimum and maximum values are within the
desired values.
6. Apply the minimum input signal to the CUB4LP/CL and adjust the FINE
OFFSET to display the exact desired minimum value.
7. Apply the maximum input signal to the CUB4LP/CL and adjust the FINE
SPAN to display the exact desired maximum value.
8. Apply the minimum input signal and verify that the display indicates
correctly.
9. Apply the maximum input signal and verify that the display indicates
correctly.
10. Repeat Steps 6 through 9 until display reads exact.
Note: The CUB4LP/CL display is factory calibrated to indicate 0.0 to 100.0
with an input of 4 to 20 mA at approximately 25°C.
BLOCK DIAGRAM
DECIMAL POINT POSITION SELECTION
The decimal point position is DIP switch selectable for one of three locations.
The CUB4LP/CL can be set up to read in 10ths, 100ths, or 1000ths. If all the
DIP switches are set to the “OFF” position, no decimal point will appear on the
display. The DIP switches are located at the rear of the unit.
APPLICATION EXAMPLE
Operation of a refinery process required a local display of the position of a
remote pipeline valve. The display would indicate 0 (zero) when the valve was
fully closed with an input signal of 4 mA. When the valve was fully open the
display would indicate 100 with an input signal of 20 mA.
Both the CUB4LP and the CUB4CL meet the necessary requirements.
MODEL NO. DESCRIPTION
Micro Line/Sensor Power Supply
(Non-hazardous use only)
CUB4LP
Reflective LCD Loop Powered Process Indicator CUB4LP00
MLPS MLPS1000
Red Backlit LCD Loop Powered Process Indicator
Positive Image Transflective LCD *CUB4LP40
Red Backlit LCD External Powered Process Indicator
Positive Image Transflective LCD
CUB4CL
Yel/Grn Backlit LCD External Powered Process
Indicator Negative Image Transmissive LCD CUB4CL10
Red Backlit LCD External Powered Process Indicator
Negative Image Transmissive LCD CUB4CL20
Yel/Grn Backlit LCD External Powered Process
Indicator Positive Image Transflective LCD CUB4CL30
CUB4CL40
*Backlight intensity will vary depending on signal level.
PART NUMBERS
TROUBLESHOOTING
For further technical assistance, contact technical
support at the appropriate company numbers listed.

E
410 www.redlion.net
zTHREE SELECTABLE D.C. RANGES
0 to 10 V, 0(4) to 20 mA, 0 to 50 mA
zMINIMUM AND MAXIMUM DISPLAY CAPTURE
zLCD, REFLECTIVE OR RED/GREEN LED BACKLIGHTING
z0.48" (12.2 mm) HIGH DIGITS
zOPTIONAL SETPOINT OUTPUT MODULES
zOPTIONAL SERIAL COMMUNICATIONS MODULES (RS232 or RS485)
zOPERATES FROM 9 TO 28 VDC POWER SOURCE
zFRONT PANEL OR CRIMSON PROGRAMMABLE
zDISPLAY COLOR CHANGE CAPABILITY AT SETPOINT OUTPUT
zNEMA 4X/IP65 SEALED FRONT BEZEL
MODEL CUB5P - MINIATURE ELECTRONIC 5-DIGIT PROCESS METER
GENERAL DESCRIPTION
The CUB5 Series provides the user the ultimate in flexibility, from its
complete user programming to the optional setpoint control and communication
capability. The CUB5 accepts a DC voltage or current input signal and provides
a display in the desired unit of measure. The meter also features minimum and
maximum display capture, display offset, units indicator, and programmable
user input. The display can be toggled either manually or automatically between
the selected displays.
The CUB5 display has 0.48" (12.2 mm) high digits. The LCD is available in
two versions, reflective or red/green backlight. The backlight version is user
selectable for the desired color and also has variable display intensity.
The capability of the CUB5 can be easily expanded with the addition of
option modules. The setpoint output cards are field installable with
programmable setpoints. Serial communications capability for RS232 or RS485
can be added with a serial option module.
The CUB5 can be powered from an optional Red Lion Micro-Line/Sensor
Power Supply (MLPS1000), which attaches directly to the back of a CUB5. The
MLPS1 is powered from 85 to 250 VAC and provides up to 400 mA to drive the
unit and sensors.
INPUT
The CUB5P is a DC Process meter. It features voltage and current input
ranges, that are selected by the user via a programming jumper and software
input range selection. The ranges consist of the following: 0 to 10 V, 0(4) to 20
mA, or 0 to 50 mA. Users should select the appropriate voltage range that
covers their maximum input.
SAFETY SUMMARY
All safety related regulations, local codes and instructions that appear in this
literature or on equipment must be observed to ensure personal safety and to
prevent damage to either the instrument or equipment connected to it. If
equipment is used in a manner not specified by the manufacturer, the protection
provided by the equipment may be impaired.
Do not use this meter to directly command motors, valves, or other actuators
not equipped with safeguards. To do so can be potentially harmful to persons or
equipment in the event of a fault to the meter.
CAUTION: Risk of Danger.
Read complete instructions prior to
installationand operation of the unit.
CAUTION: Risk of electric shock.
DIMENSIONS In inches (mm)
Note: Recommended minimum clearance (behind the panel) for mounting clip installation is 2.15" (54.6) H x 3.00" (76.2) W.
C
C
US LISTED
US LISTED
UL
R
IND. CONT. EQ.
51EB

E
4111-717-767-6511
1. DISPLAY: 5 digit LCD 0.48" (12.2 mm) high digits
CUB5PR00: Reflective LCD with full viewing angle
CUB5PB00: Transmissive LCD with selectable red or green LED backlight,
viewing angle optimized. Display color change capability with output state
when using an output module.
2. POWER: Input voltage range is +9 to +28 VDC with short circuit and input
polarity protection. Must use an RLC model MLPS1 or a Class 2 or SELV
rated power supply.
3. INPUT RANGES: Jumper Selectable
0 to 10 V, 0(4) to 20 mA, 0 to 50 mA
4. SENSOR INPUTS:
5. OVERRANGE RATINGS, PROTECTION & INDICATION:
9 to 28 VDC power circuit is not isolated from the signal circuit.
Input Overrange Indication: “OLOL”.
Input Underrange Indication: “ULUL”.
Display Overrange/Underrange Indication: “.....”/“-.....”
6. DISPLAY RESPONSE TIME: 500 msec min.
7. NORMAL MODE REJECTION: 60 dB 50/60 Hz
8. USER INPUT (USR): Programmable input. Connect USR terminal to USR
COMM to activate function. Internal 10KΩpull-up resistor to +9 to 28 VDC.
Threshold Levels: VIL = 1.0 V max; VIH = 2.4 V min; VMAX = 28 VDC
Response Time: 5 msec typ.; 50 msec debounce (activation and release)
9. CONNECTIONS: Wire clamping screw terminals
Wire Strip Length: 0.3" (7.5 mm)
Wire Gage: 30-14 AWG copper wire
Torque: 5 inch-lbs (0.565 N-m) max.
10. MEMORY: Nonvolatile E2PROM memory retains all programming
parameters and max/min values when power is removed.
11. CONSTRUCTION: This unit is rated for NEMA 4X/IP65 requirements for
indoor use. Installation Category I, Pollution Degree 2. High impact plastic
case with clear viewing window. Panel gasket and mounting clip included.
12. ENVIRONMENTAL CONDITIONS:
Operating Temperature Range for CUB5PR00: -35 to 75°C
Operating Temperature Range for CUB5PB00 depends on display color
and intensity level as per below:
Storage Temperature: -35 to 85°C
Operating and Storage Humidity: 0 to 85% max. relative humidity (non-
condensing)
Vibration According to IEC 68-2-6: Operational 5 to 500 Hz, in X, Y, Z
direction for 1.5 hours, 5 g’s.
Shock According to IEC 68-2-27: Operational 30 g, 11 msec in 3 directions.
Altitude: Up to 2000 meters
13. CERTIFICATIONS AND COMPLIANCES:
SAFETY
UL Recognized Component, File #E179259, UL61010A-1, CSA 22.2 No. 61010-1
Recognized to U.S. and Canadian requirements under the Component
Recognition Program of Underwriters Laboratories, Inc.
UL Listed, File # E137808, UL508, CSA C22.2 No. 14-M95
LISTED by Und. Lab. Inc. to U.S. and Canadian safety standards
Type 4X Indoor Enclosure rating (Face only), UL50
IECEE CB Scheme Test Certificate #US/9257C/UL
CB Scheme Test Report #E179259-V01-S02
Issued by Underwriters Laboratories, Inc.
IEC 61010-1, EN 61010-1: Safety requirements for electrical equipment
for measurement, control, and laboratory use, Part 1.
IP65 Enclosure rating (Face only), IEC 529
ELECTROMAGNETIC COMPATIBILITY
Emissions and Immunity to EN 61326: Electrical Equipment for
Measurement, Control and Laboratory use.
Notes:
1. Criterion A: Normal operation within specified limits.
Refer to EMC Installation Guidelines for additional information.
14. WEIGHT: 3.2 oz (100 g)
GENERAL METER SPECIFICATIONS
ORDERING INFORMATION
TYPE MODEL NO. DESCRIPTION PART NUMBER
CUB5 CUB5P CUB5PB00
CUB5PR00
Optional Plug-in Cards
CUB5RLY
CUB5SNK
CUB5USB
CUB5COM
USB Programming Card for CUB5 Products
RS232 Serial Communications Card
RS485 Serial Communications Card
Dual Sinking Open Collector Output card
Single Relay Output Card
CUB5USB0
CUB5COM2
CUB5COM1
CUB5SNK0
CUB5RLY0
Accessories
CBLUSB
SFCRD
CBLPROG
CBPRO
MLPS1
USB Programming Cable
Crimson 2 PC Configuration Software for Windows 98, ME, 2000, XP 1
RS232 Programming Cable (DB9-RJ11)
RS485 Programming Cable (DB9-RJ11)
Micro-Line Power Supply, 85 to 250 VAC
CBLUSB0
SFCRD200
CBLPROG0
CBPRO007
MLPS1000
Process Meter with backlight display
Process Meter with reflective display
MODEL
NO. DISPLAY COLOR
INPUT CURRENT
@ 9 VDC WITH
CUB5RLY0
CUB5PR00 --- 10 mA 40 mA
CUB5PB00 Red (max intensity) 85 mA 115 mA
CUB5PB00 Green (max intensity) 95 mA 125 mA
TEMPERATURE
1 & 2 -35 to 75°C
3-35 to 70°C
4-35 to 60°C
5-35 to 50°C
1 & 2 -35 to 75°C
3-35 to 65°C
5
4
-35 to 35°C
-35 to 50°C
INTENSITY LEVEL
Class AEN 55011Emissions
Emissions:
30 A/m
3 V/rms
Criterion A
Criterion A
EN 61000-4-8
EN 61000-4-6RF conducted interference
1 kV L-L,
Criterion AEN 61000-4-5Surge
1 kV signal
2 kV power
Criterion AEN 61000-4-4Fast transients (burst)
2 kV L&N-E power
10 V/m
Criterion AEN 61000-4-3Electromagnetic RF fields
8 kV air discharge
4 kV contact discharge
Criterion AEN 61000-4-2Electrostatic discharge
Immunity to Industrial Locations:
Power frequency magnetic fields
Green Display
Red Display
INPUT CURRENT
@ 9 VDC WITHOUT
CUB5RLY0
INPUT
RANGE
ACCURACY
@23 °C, less
than 85% RH
INPUT
IMPEDANCE
MAX INPUT
SIGNAL RESOLUTION TEMP.
COEFFICIENT
20 / 50 mA 0.1% of span 10 Ω150 mA 1 µA 70 ppm / °C
10 VDC 0.1% of span 538 KΩ30 V 1 mV 70 ppm / °C
1 Crimson 2 software is a free download from http://www.redlion.net/

E
412 www.redlion.net
INPUT RANGE JUMPER
This jumper is used to select the proper input range. The input range selected
in programming must match the jumper setting. Select a range that is high
enough to accommodate the maximum input signal to avoid overloads. To
access the jumper, remove the rear cover of the meter.
Warning: Exposed line voltage exists on the circuit boards.
Remove all power to the meter and load circuits before accessing
inside of the meter.
REMOVING THE REAR COVER
To remove the rear cover, locate the cover locking tab below the 2nd and 3rd
input terminals. To release the tab, insert a small, flat blade screwdriver between
the tab and the plastic wall below the terminals. Inserting the screwdriver will
provide enough pressure to release the tab locks. To replace the cover, align the
cover with the input terminals and press down until the cover snaps into place.
ADDING OPTION CARDS
The CUB5 meters can be fitted with optional output cards and/or serial
communications cards. The details for the plug-in cards can be reviewed in the
specification section below. The plug-in cards, that are sold separately, can be
installed initially or at a later date.
WARNING: Disconnect all power to the unit before
installing Plug-in card.
Note: Measurement errors may occur if signal input common is shared with
another circuit common (ie, serial common, Dual Sinking Output option card,
or Power Supply common) on multiple units.
SINGLE RELAY CARD
Type: Single FORM-C relay
Isolation To Sensor & User Input Commons: 1400 Vrms for 1 min.
Working Voltage: 150 Vrms
Contact Rating: 1 amp @ 30 VDC resistive; 0.3 amp @ 125 VAC resistive
Life Expectancy: 100,000 minimum operations
Response Time:
Turn On Time: 4 msec max.
Turn Off Time: 4 msec max.
DUAL SINKING OUTPUT CARD
Type: Non-isolated switched DC, N Channel open drain MOSFET
Current Rating: 100 mA max.
VDS ON: 0.7 V @ 100 mA
VDS MAX: 30 VDC
Offstate Leakage Current: 0.5 mA max.
RS485 SERIAL COMMUNICATIONS CARD
Type: RS485 multi-point balanced interface (non-isolated)
Baud Rate: 300 to 38.4k
Data Format: 7/8 bits; odd, even, or no parity
Bus Address: 0 to 99; max 32 meters per line
Transmit Delay: Selectable (refer to CUB5COM bulletin)
RS232 SERIAL COMMUNICATIONS CARD
Type: RS232 half duplex (non-isolated)
Baud Rate: 300 to 38.4k
Data Format: 7/8 bits; odd, even, or no parity
OPTIONAL PLUG-IN CARDS
1.0 INSTALLING THE METER
INSTALLATION
The meter meets NEMA 4X/IP65 requirements when properly installed. The
unit is intended to be mounted into an enclosed panel. Prepare the panel cutout
to the dimensions shown. Remove the panel latch from
the unit. Slide the panel gasket over the rear of the
unit to the back of the bezel. The unit should be
installed fully assembled. Insert the unit into the
panel cutout.
While holding the unit in place, push the panel latch over the rear of the unit
so that the tabs of the panel latch engage in the slots on the case. The panel latch
should be engaged in the farthest forward slot possible. To achieve a proper seal,
tighten the latch screws evenly until the unit is snug in the panel (Torque to
approx. 28 to 36 in-oz [0.202 to 0.26 N-m]). Do not over-tighten the screws.
INSTALLATION ENVIRONMENT
The unit should be installed in a location that does not exceed the operating
temperature and provides good air circulation. Placing the unit near devices that
generate excessive heat should be avoided.
The bezel should only be cleaned with a soft cloth and neutral soap product.
Do NOT use solvents. Continuous exposure to direct sunlight may accelerate the
aging process of the bezel.
Do not use tools of any kind (screwdrivers, pens, pencils, etc.) to operate the
keypad of the unit.
2.0 SETTING THE JUMPERS

E
4131-717-767-6511
WIRING OVERVIEW
Electrical connections are made via screw-clamp terminals located on the
back of the meter. All conductors should conform to the meter’s voltage and
current ratings. All cabling should conform to appropriate standards of good
installation, local codes and regulations. It is recommended that the power
supplied to the meter (DC or AC) be protected by a fuse or circuit breaker.
Strip the wire, leaving approximately 0.3" (7.5 mm) bare lead exposed
(stranded wires should be tinned with solder.) Insert the lead under the correct
screw-clamp terminal and tighten until the wire is secure. (Pull wire to verify
tightness.) Each terminal can accept up to one #14 AWG (2.55 mm) wire, two
#18 AWG (1.02 mm), or four #20 AWG (0.61 mm).
EMC INSTALLATION GUIDELINES
Although this meter is designed with a high degree of immunity to Electro-
Magnetic Interference (EMI), proper installation and wiring methods must be
followed to ensure compatibility in each application. The type of the electrical
noise, source or coupling method into the meter may be different for various
installations. The meter becomes more immune to EMI with fewer I/O
connections. Cable length, routing, and shield termination are very important
and can mean the difference between a successful or troublesome installation.
Listed below are some EMC guidelines for successful installation in an
industrial environment.
1. The meter should be mounted in a metal enclosure, which is properly
connected to protective earth.
2. Use shielded (screened) cables for all Signal and Control inputs. The shield
(screen) pigtail connection should be made as short as possible. The
connection point for the shield depends somewhat upon the application.
Listed below are the recommended methods of connecting the shield, in order
of their effectiveness.
a. Connect the shield only at the panel where the unit is mounted to earth
ground (protective earth).
b. Connect the shield to earth ground at both ends of the cable, usually when
the noise source frequency is above 1 MHz.
c. Connect the shield to common of the meter and leave the other end of the
shield unconnected and insulated from earth ground.
3. Never run Signal or Control cables in the same conduit or raceway with AC
power lines, conductors feeding motors, solenoids, SCR controls, and
heaters, etc. The cables should be ran in metal conduit that is properly
grounded. This is especially useful in applications where cable runs are long
and portable two-way radios are used in close proximity or if the installation
is near a commercial radio transmitter.
4. Signal or Control cables within an enclosure should be routed as far as possible
from contactors, control relays, transformers, and other noisy components.
5. In extremely high EMI environments, the use of external EMI suppression
devices, such as ferrite suppression cores, is effective. Install them on Signal
and Control cables as close to the unit as possible. Loop the cable through the
core several times or use multiple cores on each cable for additional protection.
Install line filters on the power input cable to the unit to suppress power line
interference. Install them near the power entry point of the enclosure. The
following EMI suppression devices (or equivalent) are recommended:
Ferrite Suppression Cores for signal and control cables:
Fair-Rite # 0443167251 (RLC# FCOR0000)
TDK # ZCAT3035-1330A
Steward # 28B2029-0A0
Line Filters for input power cables:
Schaffner # FN610-1/07 (RLC# LFIL0000)
Schaffner # FN670-1.8/07
Corcom # 1 VR3
Note: Reference manufacturer’s instructions when installing a line filter.
6. Long cable runs are more susceptible to EMI pickup than short cable runs.
Therefore, keep cable runs as short as possible.
7. Switching of inductive loads produces high EMI. Use of snubbers across
inductive loads suppresses EMI.
Snubber: RLC# SNUB0000.
4.0 WIRING THE METER
4.1 POWER WIRING
DC Power
+9 to +28 VDC: +VDC
Power Common: -VDC
CAUTION: 9 to 28 VDC
power circuit is not isolated
from the signal circuit.
4.2 USER INPUT WIRING
Sinking Logic
USR COMM
USR
The user input of the meter is
internally pulled up to +9 to +28 V
with 10 K resistance. The input is
active when it is pulled low (<0 .7 V).
Connect external switching device between the
User Input terminal and User Input Common.
}
The Plug-in cards are separately purchased option cards that perform specific
functions. The cards plug into the main circuit board of the meter
CAUTION: The Plug-in cards and main circuit board contain static
sensitive components. Before handling the cards, discharge
static charges from your body by touching a grounded bare
metal object. Ideally, handle the cards at a static controlled
clean workstation. Also, only handle the cards by the edges.
Dirt, oil or other contaminants that may contact the cards can
adversely affect circuit operation.
REMOVING THE REAR COVER
To remove the rear cover, locate the cover locking tab below the 2nd and 3rd
input terminals. To release the tab, insert a small, flat blade screwdriver between
the tab and the plastic wall below the terminals. Inserting the screwdriver will
provide enough pressure to release the tab locks. To replace the cover, align the
cover with the input terminals and press down until the cover snaps into place.
3.0 INSTALLING PLUG-INCARDS
Comms Card
Range Jumpers
Locking Tab
Setpoint Card

E
414 www.redlion.net
4.3 INPUT WIRING
CAUTION: Power input common is NOT isolated from user and input
commons. In order to preserve the safety of the meter application, the
power input common must be suitably isolated from hazardous live
earth referenced voltage; or input common must be at protective earth
ground potential. If not, hazardous voltage may be present at the signal or user
inputs and input common terminals. Appropriate considerations must then be given
to the potential of the user and input commons with respect to earth ground; and the
common of the plug-in cards with respect to input common.
Before connecting signal wires, the Input Range Jumper should be verified for
proper position.
4.4 SETPOINT (OUTPUT) WIRING
SINGLE SETPOINT RELAY PLUG-IN CARD
SERIAL COMMUNICATIONS PLUG-IN CARD RJ11 CONNECTOR PIN OUTS
Input Signal (self powered)
Series Loop (must use separate supply for sensor power
and each CUB5)
2 Wire With External Power
2 Wire With MLPS Power
2 Wire With Separate Sensor And CUB5 Power
ELECTRICAL CONNECTIONS
DUAL SETPOINT N-FET OPEN DRAIN PLUG-IN CARD ELECTRICAL CONNECTIONS
Output Common is not isolated from DC Power Common. Load
must be wired between OSNK terminal and V+ of the load supply.
30 VDC
150 mA
10 VDC
20/50 mA DC
MAX SIGNAL
INPUT
JUMPER
POSITION
4.5 SERIAL COMMUNICATION WIRING

E
4151-717-767-6511
5.0 REVIEWING THE FRONT BUTTONS AND DISPLAY
PROGRAMMING MODE ENTRY (SEL BUTTON)
It is recommended all programming changes be made off line, or before
installation. The meter normally operates in the Display Mode. No parameters
can be programmed in this mode. The Programming Mode is entered by
pressing and holding the SEL button. If it is not accessible then it is locked by
either a security code, or a hardware lock.
MODULE ENTRY (SEL & RST BUTTONS)
The Programming Menu is organized into separate modules. These modules
group together parameters that are related in function. The display will alternate
between Pro and the present module. The RST button is used to select the desired
module. The displayed module is entered by pressing the SEL button.
MODULE MENU (SEL BUTTON)
Each module has a separate module menu (which is shown at the start of each
module discussion). The SEL button is pressed to advance to a particular
parameter to be changed, without changing the programming of preceding
parameters. After completing a module, the display will return to Pro NO.
Programming may continue by accessing additional modules.
SELECTION / VALUE ENTRY
For each parameter, the display alternates between the present parameter and
the selections/value for that parameter. The RST button is used to move through
the selections/values for that parameter. Pressing the SEL button, stores and
activates the displayed selection/value. This also advances the meter to the next
parameter.
For numeric values, press the RST button to access the value. The right hand
most digit will begin to flash. Pressing the RST button again increments the
digit by one or the user can hold the RST button and the digit will automatically
scroll. The SEL button will advance to the next digit. Pressing and holding the
SEL button will enter the value and move to the next parameter.
PROGRAMMING MODE EXIT (SEL BUTTON)
The Programming Mode is exited by pressing the SEL button with Pro NO
displayed. This will commit any stored parameter changes to memory and
return the meter to the Display Mode. (If power loss occurs before returning to
the Display Mode, verify recent parameter changes.)
PROGRAMMING TIPS
It is recommended to start with Module 1 and proceed through each module in
sequence. When programming is complete, it is recommended to record the
parameter programming and lock out parameter programming with the user input
or programming security code.
FACTORY SETTINGS
Factory Settings may be completely restored in Module 2. This is useful
when encountering programming problems.
ALTERNATING SELECTION DISPLAY
In the explanation of the modules, the following dual display with arrows will
appear. This is used to illustrate the display alternating between the parameter
on top and the parameter’s Factory Setting on the bottom. In most cases,
selections and values for the parameter will be listed on the right.
6.0 PROGRAMMING THE METER
OVERVIEW
PROGRAMMING MENU
Indicates Program Mode Alternating Display
Factory Settings are shown.
Parameter
Selection/Value
BUTTON DISPLAY MODE OPERATION ENTERING PROGRAM MODE PROGRAMMING MODE OPERATION
SEL Index display through enabled values Press and hold for 2 seconds to activate Store selected parameter and index to next parameter
RST Resets values (MIN/MAX) or outputs Advances through the program menu
Increments selected parameter value or selection
OPERATING MODE DISPLAY DESIGNATORS
MAX - Maximum display capture value
MIN - Minimum display capture value
“1” - To the right of the display indicates setpoint 1 output activated.
“2” - To the right of the display indicates setpoint 2 output activated.
Pressing the SEL button toggles the meter through the selected displays. If display scroll is enabled, the display will toggle automatically every four seconds between
the enabled display values.
ª
«
N0
USrIN

E
416 www.redlion.net
6.1 MODULE 1 - SIGNAL INPUT PARAMETERS (1-INP)
PARAMETER MENU
ª
«
10u
rAN6E
CUB5P INPUT RANGE
Select the input range that corresponds to the external signal. This selection
should be high enough to avoid input signal overload but low enough for the
desired input resolution. This selection and the position of the Input Range
Jumper must match.
ª
«
0.000
dECPt 0.000 0.00000.000.00
DISPLAY DECIMAL POINT
Select the decimal point location for the Input, MIN and MAX displays. This
selection also affects the dSP1 and dSP2 parameters and setpoint values.
ª
«
1
FILtr
FILTER SETTING
If the displayed value is difficult to read due to small process variations or
noise, increased levels of filtering will help to stabilize the display. Software
filtering effectively combines a fraction of the current input reading with a
fraction of the previous displayed reading to generate the new display.
Filter values represent no filtering (0), up to heavy filtering (3). A value of 1
for the filter uses 1/4 of the new input and 3/4 of the previous display to generate
the new display. A filter value of 2 uses 1/8 new and 7/8 previous. A filter value
of 3 uses 1/16 new and 15/16 previous.
0,1 2 3
ª
«
10
bANd
FILTER BAND
The filter will adapt to variations in the input signal. When the variation
exceeds the input filter band value, the filter disengages. When the variation
becomes less than the band value, the filter engages again. This allows for a
stable readout, but permits the display to settle rapidly after a large process
change. The value of the band is in display units, independent of the Display
Decimal Point position. A band setting of ‘0’ keeps the filter permanently
engaged at the filter level selected above.
0to 199 display units
ª
«
KEy
StYLE
SCALING STYLE
If Input Values and corresponding Display Values are known, the Key-in
(KEY) scaling style can be used. This allows scaling without the presence or
changing of the input signal. If Input Values have to be derived from the actual
input signal source or simulator, the Apply (APLY) scaling style must be used.
KEy APLY
ª
«
0.000
INP 1
INPUT VALUE FOR SCALING POINT 1
For Key-in (KEY) style, enter the known first Input Value using the front panel
buttons. (The Input Range selection sets the decimal location for the Input
Value).
For Apply (APLY) style, the meter shows the previously stored Input Value. To
retain this value, press the SEL button to advance to the next parameter. To
change the Input Value, press the RST button and apply the input signal to the
meter. Adjust the signal source externally until the desired Input Value appears.
Press the SEL button to enter the value being displayed.
0to 59999
ª
«
0.000
dSP 1
DISPLAY VALUE FOR SCALING POINT 1
-19999 to 99999
Enter the first Display Value using the front panel buttons. This is the same
for KEY and APLY scaling styles. The decimal point follows the dECPt selection.
ª
«
10.000
INP 2
INPUT VALUE FOR SCALING POINT 2
0to 59999
For Key-in (KEY) style, enter the known second Input Value using the front
panel buttons.
For Apply (APLY) style, the meter shows the previously stored Input Value for
Scaling Point 2. To retain this value, press the SEL button to advance to the next
parameter. To change the Input Value, press the RST button and apply the input
signal to the meter. Adjust the signal source externally until the desired Input
Value appears. Press the SEL button to enter the value being displayed.
ª
«
10.000
dSP 2
DISPLAY VALUE FOR SCALING POINT 2
-19999 to 99999
Enter the second Display Value using the front panel buttons. This is the same
for KEY and APLY scaling styles.
10u 10.000 V
20.000 mA
50.000 mA
0.02A
0.05A
SELECTION RANGE
RESOLUTION
RANGE
RESOLUTION
SELECTION
ª
«
0.000
OFSEt
DISPLAY OFFSET VALUE
The display can be corrected with an offset value. This can be used to
compensate for signal variations or sensor errors. This value is automatically
updated after a Zero Display to show how far the display is offset. A value of
zero will remove the effects of offset.
-19999 to 19999
General Notes on Scaling
1. When using the Apply (APLY) scaling style, input values for scaling points
must be confined to signal limits of the selected range.
2. The same Input Value should not correspond to more than one Display Value.
(Example: 10 V can not equal 0 and 10.)
3. For input levels beyond the programmed Input Values, the meter extends the
Display Value by calculating the slope from the two coordinate pairs (INP1 /
dSP1 & INP2 / dSP2).

E
4171-717-767-6511
Entering Code 50 will display the version (x.x) of the
meter. The display then returns to CodE 00. Press the SEL
button to exit the module.
Entering Code 66 will overwrite all user settings with
the factory settings. The meter will display rESEt and then
return to CodE 00. Press the SEL button to exit the module.
6.2 MODULE 2 - SECONDARY FUNCTION PARAMETERS (2-SEC)
PARAMETER MENU
MIN DISPLAY ENABLE
USER INPUT ASSIGNMENT
Select the value(s) to which the User Input Function is assigned. The User
Input Assignment only applies if a selection of reset, display hold, or print and
reset is selected in the User Input Function menu.
MODEDISPLAY
No Function
NO
DESCRIPTION
User Input disabled.
Program Mode Lock-out
P-Loc
Zero Input
(Edge triggered)
ZErO Zero the Input Display value causing
Display Reading to be Offset.
COLOr
d-SEL
d-LEV
d-HLd
rESEt Resets the assigned value(s) to the
current input value.
HI-LO HI
dSPLO
See Programming Mode Access chart
(Module 3).
YESNO
MODE DESCRIPTIONDISPLAY
Setpoint 1 and 2 Reset
Setpoint 1 Reset
Setpoint 2 Reset
Print and Reset
Reset both setpoint 1 and 2 outputs.
Resets setpoint 1 output.
Resets setpoint 2 output.
Same as Print Request followed by a
momentary reset of the assigned value(s).
rSt12
rSt-1
rSt-2
P-r5t
Print Request
Serial transmit of the active parameters
selected in the Print Options menu
(Module 5).
Print
ª
«
2.0
HI-t
ª
«
NO
LO-En
ª
«
NO
FCS
MAX CAPTURE DELAY TIME
When the Input Display is above the present MAX value for the entered
delay time, the meter will capture that display value as the new MAX reading.
A delay time helps to avoid false captures of sudden short spikes.
ª
«
2.0
LO-t MIN CAPTURE DELAY TIME
When the Input Display is below the present MIN value for the entered delay
time, the meter will capture that display value as the new MIN reading. A delay
time helps to avoid false captures of sudden short spikes.
0.0 to 999.9 sec.
USER INPUT FUNCTION
ª
«
NO
USrIN
ª
«
dSP
U-ASN
ª
«
NO
HI-En
MAX DISPLAY ENABLE
0.0 to 999.9 sec.
Select yES to perform either of the Factory Service Operations shown below.
FACTORY SERVICE OPERATIONS
yESNO
YESNO
Enables the Maximum Display Capture capability.
Enables the Minimum Display Capture capability.
The CUB5P uses stored calibration values to provide
accurate voltage and current measurements. Over time,
the electrical characteristics of the components inside the
meter could slowly change, therefore the stored
calibration values may no longer accurately define the input circuit. For most
applications, recalibration every 1 to 2 years should be sufficient.
Calibration of the CUB5P involves a voltage or current calibration, which
should only be performed by individuals experienced in calibrating electronic
equipment. Allow a 30 minute warm up for eqiupment and unit before
performing any calibration related procedures. The following procedures should
be performed at an ambient temperature of 15 to 35°C (59 to 95°F).
CAUTION: The accuracy of the calibration equipment will directly affect the
accuracy of the CUB5P.
Calibration
1. Connect the negative lead of a precision DC source with an accuracy of 0.01%
or better to the COMM. Leave the positive lead of the DC source unconnected.
2. With the display at CodE 48, press and hold the SEL button for 2 seconds. Unit
will display CAL NO.
3. Press the RST button to select the range to be calibrated.
4. Press the SEL button. Display reads 0.0A (0.0 V for voltage).
5. Apply 0 signal:
Current: leave the positive lead of the DC source unconnected.
Voltage: apply a short to the input or connect the positive lead of the DC
source to INP+ and set the source to 0.
Press SEL. Display reads CALC for about 8 seconds.
6. When the display reads the selected range (10 V, 20 mA, or 50 mA), connect
the positive lead of the DC source to INP+ and apply the full scale input signal
for the range. Press SEL. Display reads CALC for about 8 seconds.
7. Repeat steps 3 through 6 for each input range to be calibrated. When display
reads CAL NO, press the SEL button to exit calibration.
CALIBRATION
ª
«
48
CodE
ª
«
66
CodE
ª
«
50
CodE
RESTORE FACTORY DEFAULT SETTINGS
VIEW VERSION DISPLAY
Backlight Color
(Edge Triggered)
Display Select
(Edge Triggered)
Display Intensity Level
(Edge Triggered)
Display Hold
Reset (Edge triggered)
Change backlight color with each
activation (backlight version only).
Advance once for each activation.
Increase intensity one level for each
activation (backlight version only).
Holds the assigned display, but all other
meter functions continue as long as
activated (maintained action).

E
418 www.redlion.net
The Security Code determines the programming mode and the accessibility
of programming parameters. This code can be used along with the Program
Mode Lock-out (P-Loc) in the User Input Function parameter (Module 1).
Two programming modes are available. Full Programming mode allows all
parameters to be viewed and modified. Quick Programming mode permits only
the Setpoint values to be modified, but allows direct access to these values
without having to enter Full Programming mode.
Programming a Security Code other than 0, requires this code to be entered
at the CodE prompt in order to access Full Programming mode. Depending on the
code value, Quick Programming may be accessible before the CodE prompt
appears (see chart).
PROGRAMMING SECURITY CODE
000 to 999
USER INPUT
FUNCTION
USER INPUT
STATE
SECURITY
CODE
MODE WHEN “SEL”
BUTTON IS PRESSED
FULL PROGRAMMING
MODE ACCESS
0Full Programming Immediate Access
not P-Loc ______ 1-99 Quick Programming
After Quick Programming
with correct code entry
at CodE prompt *
100-999 CodE prompt With correct code entry
at CodE prompt *
0Programming Lock No Access
Active 1-99 Quick Programming No Access
P-Loc
100-999 CodE prompt With correct code entry
at CodE prompt *
Not Active 0-999 Full Programming Immediate Access
* Entering Code 222 allows access regardless of security code.
6.3 MODULE 3 - DISPLAY AND FRONT PANEL BUTTON
PARAMETERS (3-dSP)
PARAMETER MENU
The yES selection allows the SEL button to toggle through the enabled
displays.
FRONT PANEL DISPLAY SELECT ENABLE (SEL)
This selection allows the RST button to reset the selected value(s).
FRONT PANEL RESET ENABLE (RST)
The yES selection allows the display to automatically scroll through the
enabled displays. The scroll rate is every 4 seconds. This parameter only appears
when the MAX or MIN displays are enabled.
DISPLAY SCROLL ENABLE
NOyES
dSPNO
HI
LO
HI-LO
NOyES
This parameter activates the Units Indicator on the display. There are two
methods of selecting the Indicator. List will present a group of Units
preprogrammed into the meter. Segments allows the user to choose which of the
segments should light.
UNITS INDICATOR SELECTION
LISt SEGSOFF
Enter the desired display color, red or green. This parameter is active for
backlight units only.
DISPLAY COLOR (BACKLIGHT UNIT ONLY)
6rnrEd
Enter the desired Display Intensity Level (1-5). The display will actively dim
or brighten as levels are changed. This parameter is active for backlight units only.
DISPLAY INTENSITY LEVEL (BACKLIGHT UNIT ONLY)
1 to 5
ª
«
1
dSP-t
ª
«
yES
SEL
ª
«
dSP
rSt
ª
«
NO
ScroL
This parameter enables the RST button or user input to zero the input display
value, causing the display reading to be offset.
Note: For this parameter to operate, the RST button or User Input being used
must be set to dSP and the Input value must be displayed. If these conditions are
not met, the display will not zero.
ZERO DISPLAY WITH DISPLAY RESET
NOyES
ª
«
NO
ZErO
ª
«
OFF
UNItS
ª
«
rEd
COLOr
ª
«
5
d-LEV
ª
«
000
CodE
DISPLAY UPDATE TIME
This parameter sets the display update time in seconds.
1
0.5 2seconds

E
4191-717-767-6511
Enter the reset action of the output. See figure for details.
Auto = Automatic action; This action allows the output to automatically reset off
at the trigger points per the Setpoint Action shown in Setpoint Output
Figures. The “on” output may be manually reset (off) immediately by the
front panel RST button or user input.The output remains off until the trigger
point is crossed again.
LAtCH = Latch with immediate reset action; This action latches the output on at
the trigger point per the Setpoint Action shown in Setpoint Output Figures.
Latch means that the output can only be turned off by the front panel RST
6.4 MODULE 4 - SETPOINT OUTPUT PARAMETERS (4-SPt)
PARAMETER MENU
The Setpoint Output Parameters are only active when an optional output
module is installed in the meter.
Enter the setpoint (output) to be programmed. The nin the following
parameters will reflect the chosen setpoint number. After the chosen setpoint
is completely programmed, the display will return to SPSEL. Repeat steps for
each setpoint to be programmed. Select NO to exit the module. The number of
setpoints available is setpoint output card dependent.
SETPOINT SELECT
SP-2SP-1NO
ª
«
NO
SPSEL
ª
«
2
HYS-n
HYSTERESIS VALUE
ª
«
0.0
tOF-n
ª
«
0.0
tON-n
OFF TIME DELAY
ON TIME DELAY
OUTPUT RESET ACTION
LAtCHAuto L-dLY
0.0 to 599.9 Sec
0.0 to 599.9 Sec
ª
«
Auto
rSt-n
1 to 59999
Enter desired hysteresis value. See Setpoint Output Figures for visual
explanation of how setpoint output actions (balanced and unbalanced) are
affected by the hysteresis. When the setpoint is a control output, usually
balanced hysteresis is used. For alarm applications, usually unbalanced
hysteresis is used. For unbalanced hysteresis modes, the hysteresis functions on
the low side for high acting setpoints and functions on the high side for low
acting setpoints.
Note: Hysteresis eliminates output chatter at the switch point, while time delay
can be used to prevent false triggering during process transient events.
Enter the time value in seconds that the output is delayed from turning on
after the trigger point is reached. A value of 0.0 allows the meter to update the
output status per the response time listed in the Specifications.
Enter the time value in seconds that the output is delayed from turning off
after the trigger point is reached. A value of 0.0 allows the meter to update the
output status per the response time listed in the Specifications.
Select YES to enable Setpoint 2 and access the setup parameters. If NO is
selected, the unit returns to SPSEL and setpoint 2 is disabled.
SETPOINT 2 ENABLE
NOYES
ª
«
NO
Enb-2
Enter the action for the selected setpoint (output). See Setpoint Output
Figures for a visual detail of each action.
SETPOINT ACTION
ª
«
HI-Ub
Act-n LO-UbHI-UbLO-bL
HI-bL
LO-Ub =
HI-Ub =
LO-bL =
HI-bL =
Low Acting, with unbalanced hysteresis
High Acting, with unbalanced hysteresis
Low Acting, with balanced hysteresis
High Acting, with balanced hysteresis
High Acting (Balanced Hys) = HI-bL
Low Acting (Unbalanced Hys) = LO-Ub
Low Acting (Balanced Hys) = LO-bL
High Acting (Unbalanced Hys) = HI-Ub
SETPOINT VALUE
Enter the desired setpoint value. The decimal point position for the setpoint
and hysteresis values follow the selection set in Module 1.
-19999 to 99999
ª
«
10000
SPt-n

E
420 www.redlion.net
6.5 MODULE 5 - SERIAL SETUP PARAMETERS (5-SSEr)
The Serial Setup Parameters are only active when the optional RS232 or RS485 serial communications module is installed in the meter. Refer to the CUB5COM
bulletin for complete details on CUB5 serial communications.
PARAMETER MENU
button or user input manual reset, serial reset command or meter power
cycle. When the user input or RST button is activated (momentary action),
the corresponding “on” output is reset immediately and remains off until the
trigger point is crossed again. (Previously latched alarms will be off if power
up Display Value is lower than setpoint value.)
L-dLY = Latch with delay reset action; This action latches the output on at the
trigger point per the Setpoint Action shown in Setpoint Output Figures. Latch
means that the output can only be turned off by the front panel RST button
or user input manual reset, serial reset command or meter power cycle. When
the user input or RST button is activated (momentary action), the meter
delays the event until the corresponding “on” output crosses the trigger off
point. (Previously latched outputs are off if power up Display Value is lower
than setpoint value. During a power cycle, the meter erases a previous L-dLY
reset if it is not activated at power up.)
Setpoint Output Reset Actions
This parameter enables the RST button or user input to reset the output when
the display is reset.
Note: For this parameter to operate, the RST button or User Input being used
must be set to dSP and the Input value must be displayed. If these conditions are
not met, the output will not reset.
ª
«
YES
rEn-n
OUTPUT RESET WITH DISPLAY RESET
YESNO
When YES, the output is disabled (after a power up) until the trigger point is
crossed. Once the output is on, the output operates normally per the Setpoint
Action and Output Reset action.
ª
«
NO
Stb-n
STANDBY OPERATION
YESNO
This parameter enables the backlight CUB5 to switch the backlight color when
the output state changes. This parameter is only active for the backlight version.
CHANGE DISPLAY COLOR w/OUTPUT STATE
ª
«
NO
ChC-n
YESNO

E
4211-717-767-6511
CUB5P PROGRAMMING QUICK OVERVIEW
Press and hold SEL button
to enter Programming Mode.

E
422 www.redlion.net
DUAL RANGE, 4 to 20 mA or 10 to 50 mA *
3 1/2-DIGIT, 0.56" (14.2 mm) HIGH LED READOUT
24 VDC EXCITATION SUPPLY
WIDE SPAN & OFFSET SCALING RANGE
OVER-RANGE INDICATION
SELECTABLE DECIMAL POINTS
NEMA 4X/IP65 SEALED FRONT BEZEL
OPTIONAL CUSTOM UNITS OVERLAY W/BACKLIGHT
*Also adapts to 0 to 50, 0 to 20, 0 to 10, 1 to 5 mA ranges as well as
bi-polar inputs.
GENERAL DESCRIPTION
The premium features of the PAX Lite Series can now be applied to
measurement of process variables. With its high sensitivity and programmability,
the PAX Lite Current Loop Meter can be set up for a wide variety of applications.
In most plants the PAXLCL can be used for 90 to 95% of current loop meter needs
for readout of pressure, flow, temperature, level and other variables. The meter has
been specifically designed for harsh industrial environments. With NEMA
4X/IP65 sealed bezel and extensive testing of noise effects to CE requirements,
the meter provides a tough yet reliable application solution. This allows the
PAXLCL to be used in dirty, hostile environments and in wash-down areas. The
3 1/2-digit bi-polar display (minus sign displayed when current or voltage is
negative) features 0.56" (14.2 mm) high, 7-segment LEDs for easy reading.
SAFETY SUMMARY
All safety related regulations, local codes and instructions that appear in the
literature or on equipment must be observed to ensure personal safety and to
prevent damage to either the instrument or equipment connected to it. If
equipment is used in a manner not specified by the manufacturer, the protection
provided by the equipment may be impaired.
MODEL PAXLCL - PAX LITE CURRENT LOOP METER
DIMENSIONS In inches (mm) Note: Recommended minimum clearance (behind the panel) for mounting clip installation is
2.1" (53.4) H x 5.0" (127) W.
CAUTION: Read complete
instructions prior to installation
and operation of the unit.
CAUTION: Risk of electric shock.
C
C
US LISTED
US LISTED
UL
R
IND. CONT. EQ.
51EB

E
4231-717-767-6511
Ordering Information . . . . . . . . . . . . . . . . . . . 2
General Meter Specifications. . . . . . . . . . . . . 3
Accessories . . . . . . . . . . . . . . . . . . . . . . . . . 3
Installing the Meter . . . . . . . . . . . . . . . . . . . . 4
Setting the Switches . . . . . . . . . . . . . . . . . . . 4
Wiring the Meter . . . . . . . . . . . . . . . . . . . . . . 4
Scaling the Meter . . . . . . . . . . . . . . . . . . . . . 6
Calibrating the Meter. . . . . . . . . . . . . . . . . . . 7
Applications . . . . . . . . . . . . . . . . . . . . . . . . . 8
TABLE OFCONTENTS
ORDERING INFORMATION
PAXL 0
0
CL - Current Loop Meter
CL
Meter Part Numbers
Accessories Part Numbers
PAXLBK30Units Label Kit Accessory PAXLBK
Accessories
TYPE PART NUMBERSDESCRIPTIONMODEL NO.

E
424 www.redlion.net
1. DISPLAY: 3 1/2-digit, 0.56" (14.2 mm) high, 7-segment LED, (-) minus sign
displayed when current or voltage is negative. Decimal points inserted before
1st, 2nd, or 3rd least significant digits by DIP switch selection.
2. OVER-RANGE INDICATION: Indicated by blanking 3 least significant
digits.
3. POWER:
AC Power: 85 to 250 VAC, 50/60 HZ, 6 VA
Isolation: 2300 Vrms for 1 min. between input and supply (300 V working
voltage).
4. INPUT SENSITIVITY: (Numerical Readout Change/mA)
260 units/mA @ 4 to 20 mA input
105 units/mA @ 10 to 50 mA input
(max. allowable input current, 170 mA)
5. COMPLIANCE: Voltage drop across input at max. signal current, less than
600 mV for both 4 to 20 and 10 to 50 mA ranges.
6. INPUT RESISTANCE:
4 to 20 mA - 29.2 Ω
10 to 50 mA - 11.8 Ω
7. SCALING RANGE:
SPAN: 32 coarse steps (binary progression with 5 DIP switches) Each step
providing approx. 8.125 numerical units/mA/step sensitivity for 4 to 20
mA input and 3.25 units/mA/step for 10 to 50 mA input.
OFFSET: 16 coarse steps (binary progression with 4 DIP switches) with ±
switch to add or subtract offset. Each step adds or subtracts approximately
175 from the numerical display for a total offset range of ±2700.
8. LINEARITY: ±(0.05% ±1 digit)
9. READING RATE: 2.5 updated readings/second, nominal.
10. RESPONSE TIME: 1 second to settle for step change.
11. LOW FREQUENCY NOISE REJECTION:
Normal Mode Rejection: 63 dB @ 50/60 Hz
Common Mode Rejection: 100 dB, DC to 50/60 Hz
12. ENVIRONMENTAL CONDITIONS:
Operating Temperature: 0° to 60°C
Storage Temperature: -40° to 80°C
Operating and Storage Humidity: 85% max. relative humidity (non-
condensing)
Span Temperature Coeff.: 100 PPM/°C
Offset Temperature Coeff.: 100 PPM/°C
Altitude: Up to 2000 meters
13. CERTIFICATIONS AND COMPLIANCES:
SAFETY
UL Recognized Component, File # E179259, UL3101-1, CSA C22.2 No.
1010-1
Recognized to U.S. and Canadian requirements under the Component
Recognition Program of Underwriters Laboratories, Inc.
UL Listed, File # E137808, UL508, CSA C22.2 No. 14-M95
LISTED by Und. Lab. Inc. to U.S. and Canadian safety standards
Type 4X Enclosure rating (Face only), UL50
IECEE CB Scheme Test Certificate # UL/7470A/UL
CB Scheme Test Report # 03ME09282-08292003
Issued by Underwriters Laboratories, Inc.
IEC 1010-1, EN 61010-1: Safety requirements for electrical equipment
for measurement, control, and laboratory use, Part 1.
IP65 Enclosure rating (Face only), IEC 529
IP20 Enclosure rating (Rear of unit), IEC 529
ELECTROMAGNETIC COMPATIBILITY
Emissions and Immunity to EN 61326: Electrical Equipment for
Measurement, Control and Laboratory use.
Notes:
1. Criterion A: Normal operation within specified limits.
2. Criterion B: Temporary loss of performance from which the unit self-
recovers.
14. EXCITATION SUPPLY: 24 VDC @ 50 mA max. Regulated and isolated.
15. CONNECTIONS: High compression cage-clamp terminal block
Wire Strip Length: 0.3" (7.5 mm)
Wire Gage: 30-14 AWG copper wire
Torque: 4.5 inch-lbs (0.51 N-m) max.
16. CONSTRUCTION: This unit is rated for NEMA 4X/IP65 use. IP20 Touch
safe. Installation Category II, Pollution Degree 2. One piece bezel/case.
Flame resistant. Panel gasket and mounting clip included.
17. WEIGHT: 0.65 lbs (0.24 kg)
GENERAL METER SPECIFICATIONS
ACCESSORIES
UNITS LABEL KIT (PAXLBK)
Each meter has a units indicator with backlighting that can be customized using
the Units Label Kit (PAXLBK30). The backlight is controlled by a DIP switch.
Class BEN 55011Emissions
Emissions:
0.5 cycle
Criterion AEN 61000-4-11Voltage dip/interruptions
30 A/m
Criterion AEN 61000-4-8Power frequency magnetic fields
3 V/rms
Criterion AEN 61000-4-6RF conducted interference
1 kV signal
1 kV L-L,
Criterion AEN 61000-4-5Surge
2 kV signal
2 kV power
Criterion AEN 61000-4-4Fast transients (burst)
2 kV L&N-E power
10 V/m
Criterion BEN 61000-4-3Electromagnetic RF fields
8 kV air discharge
4 kV contact discharge
Criterion AEN 61000-4-2Electrostatic discharge
Immunity:

E
4251-717-767-6511
The meter has switches, which must be checked and/or changed prior to
applying power. To access the switches, remove the meter base from the case by
firmly squeezing and pulling back on the side rear finger tabs. This should lower
the latch below the case slot (which is located just in front of the finger tabs). It
is recommended to release the latch on one side, then start the other side latch.
Set-Up DIP Switches
Two banks of DIP switches are located inside the meter. The 10 position bank
of switches are used for calibrating the meter. The values of these switches are
discussed in section 5.0 Calibrating the Meter.
The bank of 4 switches located near the front display are used for the
selection of decimal points and backlight annunciator. Selecting “ON” position
enables the function.
2.0 SETTING THE SWITCHES
3.0 WIRING THE METER
1.0 INSTALLING THE METER
Installation
The PAX meets NEMA 4X/IP65 requirements when properly installed. The
unit is intended to be mounted into an enclosed panel. Prepare the panel cutout
to the dimensions shown. Remove the panel latch from the unit. Slide the panel
gasket over the rear of the unit to the back of
the bezel. The unit should be installed
fully assembled. Insert the unit into
the panel cutout.
While holding the unit in place, push the panel latch over the rear of the unit
so that the tabs of the panel latch engage in the slots on the case. The panel latch
should be engaged in the farthest forward slot possible. To achieve a proper seal,
tighten the latch screws evenly until the unit is snug in the panel (Torque to
approximately 7 in-lbs [79N-cm]). Do not over-tighten the screws.
Installation Environment
The unit should be installed in a location that does not exceed the maximum
operating temperature and provides good air circulation. Placing the unit near
devices that generate excessive heat should be avoided.
The bezel should be cleaned only with a soft cloth and neutral soap product.
Do NOT use solvents. Continuous exposure to direct sunlight may accelerate the
aging process of the bezel.
PANEL CUT-OUT
WIRING OVERVIEW
Electrical connections are made via screw-clamp terminals located on the
back of the meter. All conductors should conform to the meter’s voltage and
current ratings. All cabling should conform to appropriate standards of good
installation, local codes and regulations. It is recommended that power supplied
to the meter (AC) be protected by a fuse or circuit breaker.
When wiring the meter, compare the numbers embossed on the back of the
meter case against those shown in wiring drawings for proper wire position. Strip
the wire, leaving approximately 0.3" (7.5 mm) bare lead exposed (stranded wires
should be tinned with solder). Insert the lead under the correct screw-clamp
terminal and tighten until the wire is secure. (Pull wire to verify tightness.)
Main
Circuit
Board
D.P./ BACKLIGHT
REAR TERMINALS
FRONT DISPLAY
4
3
2
1
ON
OFFSET
SPAN
ON
1
2
3
4
5
6
7
8
9
10
OFFSET
SPAN
Backlight Annunciator for Units Label4
Decimal Point 3 (0.000)3
Decimal Point 2 (00.00)2
Decimal Point 1 (000.0)1
FUNCTIONSWITCH

E
426 www.redlion.net
3.2 INPUT SIGNAL WIRING
2-WIRE, EXTERNAL EXCITATION 2-WIRE, WITH EXCITATION (Series Conn.) 2-WIRE, WITH EXCITATION (Parallel Conn.)
NOTES
1. When shielded wire leads are used, connect the shield to earth ground at the meter and insulate the other end to avoid contact with machine ground.
2. Never run signal leads in conduit, bundles, or race ways with power conductors. Avoid runs close to contactors, relays, solenoids, transformers, and other potential
sources of electrical noise.
EMC INSTALLATION GUIDELINES
Although this meter is designed with a high degree of immunity to Electro-
Magnetic Interference (EMI), proper installation and wiring methods must be
followed to ensure compatibility in each application. The type of the electrical
noise, its source or the method of coupling into the unit may be different for
various installations. Listed below are some EMC guidelines for successful
installation in an industrial environment.
1. The meter should be mounted in a metal enclosure, which is properly
connected to protective earth.
2. Never run Signal or Control cables in the same conduit or raceway with AC
power lines, conductors feeding motors, solenoids, SCR controls, and
heaters, etc. The cables should be run in metal conduit that is properly
grounded. This is especially useful in applications where cable runs are long
and portable two-way radios are used in close proximity or if the installation
is near a commercial radio transmitter.
3. Signal or Control cables within an enclosure should be routed as far away as
possible from contactors, control relays, transformers, and other noisy
components.
4. In extremely high EMI environments, the use of external EMI suppression
devices, such as ferrite suppression cores, is effective. Install them on Signal
and Control cables as close to the unit as possible. Loop the cable through the
core several times or use multiple cores on each cable for additional protection.
Install line filters on the power input cable to the unit to suppress power line
interference. Install them near the power entry point of the enclosure. The
following EMI suppression devices (or equivalent) are recommended:
Ferrite Suppression Cores for signal and control cables:
Fair-Rite # 0443167251 (RLC #FCOR0000)
TDK # ZCAT3035-1330A
Steward #28B2029-0A0
Line Filters for input power cables:
Schaffner # FN610-1/07 (RLC #LFIL0000)
Schaffner # FN670-1.8/07
Corcom #1VR3
Note: Reference manufacturer’s instructions when installing a line filter.
5. Long cable runs are more susceptible to EMI pickup than short cable runs.
Therefore, keep cable runs as short as possible.
6. Switching of inductive loads produces high EMI. Use of snubbers across
inductive loads suppresses EMI.
Snubber: RLC#SNUB0000.
3.1 POWER WIRING
AC Power
Terminal 1: VAC
Terminal 2: VAC

E
4271-717-767-6511
DESCRIPTION OF OPERATION
The PAX Lite Current Loop Meter consists of a digital volt meter combined
with an analog scaling circuit (shown above). The unit was designed primarily for
use with 4-20 mA and 10-50 mA current loop signal circuits. However, it can also
be adapted to other current ranges, such as 0-50 mA, 0-20 mA, 0-10 mA, and in
a great many applications it can be used even with 0-5 mA and 1-5 mA current
loops. In addition, input current can be reversed in polarity resulting in negative
numerical readout with a minus (-) sign displayed. Input terminals 3 and 4 are
connected in series with 10-50 mA current loops, and Terminal 3 and 5 are series
connected with 4-20 mA loops. In either case, the voltage drop generated across
the shunt resistor(s) ranges from approximately 0.12 V min. (@ 4 or 10 mA) to
0.59 V max. (@ 20 or 50 mA). The buffer amplifier (K1) conditions and filters
the input signal voltage and applies it to the input of the scaling circuit. The
procedure for scaling PAX Lite Current Loop Meters is simplified by dividing the
scaling process into two separate components, span adjustments and offset
adjustments which are defined in the following discussion.
SPAN ADJUSTMENTS
Span is defined as the numerical range that the display traverses, disregarding
decimal points, when the input signal current is varied from minimum (4 or 10
mA) to maximum (20 or 50 mA). For example, if a unit is to display 25.0 @ 4
mA and 100.0 @ 20 mA, the span is 750 (the difference between 250 and 1000).
Had the minimum display been -25.0 @ 4 mA and +100.0 @ 20 mA, the span
would be 1250 (1000 - (-250) = 1250). (Note: the terms “GAIN”, “SCALE”, and
“SENSITIVITY” are also frequently used interchangeably with the term
“SPAN.”) The PAX Lite Current Loop Meter
can be set up over a very wide span range by
means of the coarse DIP switches S6-S10, and
the fine screwdriver adjustment pot, located at
the back cover. The coarse span switches add
parallel input resistors to the summing
amplifier (K2), thereby increasing its gain, or
sensitivity, as more summing resistors are
added. Effectively, adding more parallel input
resistors, increases the slope of the transfer
curve (at right) and increases the numerical
readout for a given input signal current change. The input summing resistor values
are weighted in a binary progression, so they can be switched in combinations to
give 32 discrete steps of span. The fine adjust control brackets these coarse steps
and can be adjusted to the exact span needed.
The approximate span contributed by each switch is shown on the rear label.
These values are based on the standard current-loop spans of 4 to 20 mA (16 mA
current variation) and 10-50 mA (40 mA current variation). In other words, if S7
only is turned “ON”, the numerical readout will display a change approximately
1050 for a current swing of 16 mA (4-20 mA input) or 40 mA (10-50 mA input).
If S8 were also turned “ON”, the numerical readout would swing approximately
1575 (1050 for S7 + 525 for S8) for the same signal current variation. The fine
control has a continuous span range of approximately 0-150.
OFFSET ADJUSTMENTS
In the foregoing discussion of span, the transfer curves were shown as
“ZERO-BASED”, i.e., the numerical readout displays “0” when the signal
current goes to zero. With current loop ranges such as 0-5 or 0-10, or 0-20 mA,
and with Bi-Polar (+/-) signals, this is often the desired condition. However,
with 4-20 and 10-50 mA current loops, the minimum current level of 4 or 10
mA usually represents the zero level of the parameter being displayed. There are
also many applications where the minimum
(or zero level) represents some value that
does not fall on a zero based transfer curve.
To accommodate non-zero based
applications, the PAX Lite Current Loop
Meter has provisions for offsetting the
transfer curve over a wide range.
Essentially, offset moves the transfer curve
up or down to change its intercept with the
numerical readout axis, but it does not
change the slope (SPAN) of the transfer
curve. In the PAX Lite Current Loop Meter,
offset is accomplished by adding (or
subtracting) a constant at the input of the summing amplifier (K2). This offset
constant is summed in with a switched binary resistor network and a fine adjust
offset control in a similar manner to that used for span adjustment. Switches S2-
S5 can be turned on in combinations to give 16 different coarse offset levels.
Each switch is labeled to show the approximate amount of offset contributed
when it is turned “ON”. Switch 1 selects the polarity of the switched-in offset
value and allows offsetting the transfer curve “UP” (adding the offset constant)
or “DOWN” (subtracting). The fine offset control has a numerical readout range
of ±100 and brackets all the coarse switched ranges.
PAXLCL SCHEMATIC
4.0 SCALING THE METER

E
428 www.redlion.net
5.0 CALIBRATING THE METER
Direct calibration in the signal loop is usually not practical due to the
difficulty in varying the measured parameter and the confusing interaction that
occurs between span and offset adjustments. However, the PAXLCL can be
quickly and easily bench calibrated using a commercially available current
calibrator or the calibration set-up shown below.
CALIBRATION PROCEDURE
The procedure outlined below minimizes span/offset interaction and
simplifies calibration. In Steps 1 to 4 the unit is “nulled” to zero readout with
zero input signal current. In Steps 5 and 6, the span adjustments are made to
establish the required slope of the transfer curve. Then in Step 7, the transfer
curve is shifted up or down as required by setting the offset adjustments. In Step
8, the final “tweaking” adjustments are made at minimum and maximum signal
current. Setting the decimal points in Step 9 completes the calibration.
Before calibrating, the READOUT SPAN (Rs) and SWING CURRENT (Is)
must be determined.
WHERE:
Rs = (Max. Numerical Display) - (Min. Numerical Display) (Disregard Decimal Points)
Is = (Current @ Max. Display) - (Current @ Min. Display)
Example:
Readout is to be 0.00 @ 4 mA and 10.00 @ 20 mA.
READOUT SPAN (Rs) = 1000 - 0 = 1000
SWING CURRENT (Is) = 20 mA - 4 mA = 16
CALIBRATION STEPS
1. Power down the meter and remove it from its case. Turn off all offset and
span adjustment switches (S2-S10 down). S1 has no effect when zeroing
and can be in either position.
2. Turn the span control pot fully counter-clockwise (20 turns max.).
3. Turn on a combination of span adjust switches (6-10) to obtain a total value
closest to (but not greater than) the READOUT SPAN (Rs) desired (1000
in this example). The following chart gives an approximate span
adjustment value for each switch:
4. Place unit in its case and apply power. Apply zero current. Adjust the
indicator to read zero using the offset adjustment pot.
5. Apply the SWING CURRENT (Is) (16 mA in the example) to the input.
Set the exact READOUT SPAN value (1000) with span adj.pot.
6. Apply zero current to see if the zero value has shifted. If it has, re-zero with
the offset pot, then repeat Step 5.
7. After the span has been adjusted, set the signal current to the minimum
level (4 mA in the example). Record the meter reading (in this example the
reading will be 250). Subtract the desired reading at minimum current
value (0 in the example) from the recorded reading (0-250 = - 250). Power
down the meter and remove it from its case. Set the offset add/subtract
switch S1 (subtract = on), and the offset switches (S2-S5) to obtain a total
value closest to (but no more than) the difference between the desired
reading at minimum current value and the observed reading The following
chart gives an approximate offset adjustment value for each switch:
Place the meter in its case and apply power. Using the offset adjust pot,
adjust the readout to equal the desired reading at the minimum current
value (0 in the example).
8. Adjust the input signal current to its maximum value to see if the proper
readout is obtained (1000 @ 20 mA in the example). If the readout is
slightly off, adjust the span pot to obtain the true reading. Then, recheck
the reading at the minimum input current (4 mA) and readjust the offset
pot if necessary. Repeat the maximum and minimum readout adjustments
until the unit displays the proper readout at both extremes.
9. Set decimal points as desired using the three decimal point switches. The
unit can now be installed.
TROUBLESHOOTING
For further assistance, contact technical support at the appropriate company
numbers listed.
SWITCH NUMBER SPAN VALUE
62100
71050
8525
9260
10 130
1755
3504
7003
14002
OFFSET VALUESWITCH NUMBER

E
4291-717-767-6511
Example 1:
A PAXLCL is to be calibrated to match a flow transducer whose output is 10
mA @ 0 GPM and 50 mA @ 1375 GPM.
READOUT SPAN (Rs) = 1375 −0 = 1375
SWING CURRENT (Is) = 50 mA −10 mA = 40 mA
ADJUSTMENTS (Refer to the transfer curve below)
Null the unit to zero readout @ 0
current per Steps 1 to 4 of the
calibration steps.
Set the coarse and fine span adjustments
to get a readout of 1375 @ 40 mA per
Steps 5 and 6. Note: With the full
standard swing of 40 mA, the coarse
span switch reference markings can be
used to determine settings as follows:
S7 ON (1050) + S9 ON (260) = 1310
Span set with switches.
375 (needed) - 1310 (with SW’s) = 65
w. fine span adj.
Set offset to readout 0 @ 10 mA per Step 7. Note: The read out observed
when the 10 mA min. current is first applied can be used to determine the
offset switch settings.) In this example the readout will be (+) 344 when the
10 mA min. current is first applied. Applying -344 offset then reduces the
readout to zero @ 10 mA.
Check readout at max. (50 mA) and min. (10 mA) and fine tune (tweak) as
required per Step 8.
Example 2 (Negative Slope):
A level measuring device puts out 6 mA when a storage tank is full and 15
mA when the tank is empty. The PAXLCL is to readout 90.0 tons at full tank
and zero when empty.
READOUT SPAN (Rs) = 900 −0 = 900 (Disregard Decimal Points)
SWING CURRENT (Is) = 6 mA (@ max rdg) - 15 mA (@ min rdg) = -9 mA
In this case, the signal current is reverse [Term 3 (-) with respect to Term 5
(+)] causing the readout to go “down” (increasingly negative) as the negative
current increases.
ADJUSTMENTS
Null the unit per Steps 1 to 4.
Set slope of transfer curve with span
adjustments to get readout of -900 @ -
9 mA per Steps 5 and 6.
Move transfer curve up by applying
(+) offset per Step 7 until readout is
+900 @ -6 mA.
Check extreme readings per Step 8, 0
readout @ -15 mA and +900 readout
@ -6 mA. Set D.P. Switch S1 and
replace unit in case.
Example 3 (± Display):
A differential pressure transducer has a range of ±1500 PSI with a 4 to 20 mA
output (-1500 @ 4 mA, +1500 @ 20 mA).
READOUT SPAN (Rs) = +1500 −(−1500) = 3000
SWING CURRENT (Is) = 20 mA(max) - 4 mA(min) = 16 mA
Note: Since the display readout is limited to 1999 numerical indication, the
full READOUT SPAN of 3000 cannot be obtained during zero based span
adjustment. However, dividing both the READOUT SPAN and SWING
CURRENT by two, i.e. 1500 readout @ 8 mA, allows the span adjustment
to be made for the proper transfer curve slope.
ADJUSTMENTS
Null the unit per Steps 1 to 4.
Set transfer curve slope with span
adjustments per Steps 5 and 6, to get a
readout of +1500 @ 8 mA.
Apply (-) offset per Step 7 to get a
reading of -1500 @ 4 mA.
Check min. and max. extremes and
tweak if required to get desired readout
@ 4 and 20 mA per Step 8.
6.0 APPLICATIONS

E
430 www.redlion.net
zWIDE SPAN & OFFSET SCALING RANGE
z3 1/2-DIGIT, 0.56" (14.2 mm) HIGH LED READOUT
z24 VDC EXCITATION SUPPLY
zOVER-RANGE INDICATION
zSELECTABLE DECIMAL POINTS
zNEMA 4X/IP65 SEALED FRONT BEZEL
zOPTIONAL CUSTOM UNITS OVERLAY W/BACKLIGHT
z±25 VOLT DC MAXIMUM INPUT
GENERAL DESCRIPTION
The premium features of the PAX Lite Series can now be applied to
measurement of process variables. With its high sensitivity and programmability,
the PAX Lite Process Volt Meter can be set up for a wide variety of applications.
In most plants the PAXLPV can be used for 90 to 95% of Process Volt meter
needs for readout of pressure, flow, temperature, level and other variables. The
meter has been specifically designed for harsh industrial environments. With
NEMA 4X/IP65 sealed bezel and extensive testing of noise effects to CE
requirements, the meter provides a tough yet reliable application solution. This
allows the PAXLPV to be used in dirty, hostile environments and in wash-down
areas. The 3½-digit bi-polar display (minus sign displayed when voltage is
negative) features 0.56" (14.2 mm) high, 7-segment LEDs for easy reading.
SAFETY SUMMARY
All safety related regulations, local codes and instructions that appear in the
literature or on equipment must be observed to ensure personal safety and to
prevent damage to either the instrument or equipment connected to it. If
equipment is used in a manner not specified by the manufacturer, the protection
provided by the equipment may be impaired.
MODEL PAXLPV - PAX LITE PROCESS VOLT METER
DIMENSIONS In inches (mm) Note: Recommended minimum clearance (behind the panel) for mounting clip installation is
2.1" (53.4) H x 5.0" (127) W.
CAUTION: Risk of Danger.
Read complete instructions prior to
installation and operation of the unit.
CAUTION: Risk of electric shock.
C
C
US LISTED
US LISTED
UL
R
IND. CONT. EQ.
51EB

E
4311-717-767-6511
Ordering Information . . . . . . . . . . . . . . . . . . . 2
General Meter Specifications. . . . . . . . . . . . . 3
Accessories . . . . . . . . . . . . . . . . . . . . . . . . . 3
Installing the Meter . . . . . . . . . . . . . . . . . . . . 4
Setting the Switches . . . . . . . . . . . . . . . . . . . 4
Wiring the Meter . . . . . . . . . . . . . . . . . . . . . . 5
Scaling the Meter . . . . . . . . . . . . . . . . . . . . . 6
Calibrating the Meter. . . . . . . . . . . . . . . . . . . 7
Applications . . . . . . . . . . . . . . . . . . . . . . . . . 8
TABLE OFCONTENTS
ORDERING INFORMATION
PAXL 0
0
PV - Process Volt Meter
PV
Meter Part Numbers
Accessories Part Numbers
PAXLBK30Units Label Kit Accessory PAXLBK
Accessories
TYPE PART NUMBERSDESCRIPTIONMODEL NO.

E
432 www.redlion.net
GENERAL METER SPECIFICATIONS
ACCESSORIES
UNITS LABEL KIT (PAXLBK)
Each meter has a units indicator with backlighting that can be customized using
the Units Label Kit (PAXLBK30). The backlight is controlled by a DIP switch.
1. DISPLAY: 3 1/2-digit, 0.56" (14.2 mm) high, 7-segment LED, (-) minus sign
displayed when current or voltage is negative. Decimal points inserted before
1st, 2nd, or 3rd least significant digits by DIP switch selection.
2. OVER-RANGE INDICATION: Indicated by blanking 3 least significant
digits.
3. POWER:
AC Power: 85 to 250 VAC, 50/60 HZ, 6 VA
Isolation: 2300 Vrms for 1 min. to all inputs.
4. INPUT SENSITIVITY: (Numerical Readout Change/Volt) Adjustable from
40 units/volt to 1000 units/volt. Max. allowable input voltage, ±25 volts DC.
5. INPUT RESISTANCE: 1 M Ω
6. SCALING RANGE:
SPAN: 32 coarse steps (binary progression with 5 DIP switches) Each step
providing approx. 40 numerical units/volt/step sensitivity. Fine adjust
brackets the coarse step increments.
OFFSET: 16 coarse steps (binary progression with 4 DIP switches) with ±
switch to add or subtract offset. Each step adds or subtracts approximately
175 from the numerical display for a total offset range of ±2700. Fine control
brackets the steps.
7. LINEARITY: ±(0.05% ±1 digit)
8. READING RATE: 2.5 updated readings / second, nominal.
9. RESPONSE TIME: 1 second to settle for step change.
10. LOW FREQUENCY NOISE REJECTION:
Normal Mode Rejection: 63 dB @ 50/60 Hz
Common Mode Rejection: 100 dB, DC to 50/60 Hz
11. ENVIRONMENTAL CONDITIONS:
Operating Temperature: 0° to 60°C
Storage Temperature: -40° to 80°C
Operating and Storage Humidity: 85% max. relative humidity (non-
condensing)
Span Temperature Coeff.: 100 PPM/°C
Offset Temperature Coeff.: 100 PPM/°C
Altitude: Up to 2000 meters
12. CERTIFICATIONS AND COMPLIANCES:
SAFETY
UL Recognized Component, File # E179259, UL61010A-1, CSA C22.2 No.
1010-1
Recognized to U.S. and Canadian requirements under the Component
Recognition Program of Underwriters Laboratories, Inc.
UL Listed, File # E137808, UL508, CSA C22.2 No. 14-M95
LISTED by Und. Lab. Inc. to U.S. and Canadian safety standards
Type 4X Enclosure rating (Face only), UL50
IECEE CB Scheme Test Certificate # US/8843A/UL
CB Scheme Test Report # 04ME11209-20041018
Issued by Underwriters Laboratories, Inc.
IEC 61010-1, EN 61010-1: Safety requirements for electrical equipment
for measurement, control, and laboratory use, Part 1.
IP65 Enclosure rating (Face only), IEC 529
IP20 Enclosure rating (Rear of unit), IEC 529
ELECTROMAGNETIC COMPATIBILITY
Emissions and Immunity to EN 61326: Electrical Equipment for
Measurement, Control and Laboratory use.
Notes:
1. Criterion A: Normal operation within specified limits.
2. Criterion B: Temporary loss of performance from which the unit self-
recovers.
13. EXCITATION SUPPLY: 24 VDC @ 50 mA max. Regulated and isolated.
14. CONNECTIONS: High compression cage-clamp terminal block
Wire Strip Length: 0.3" (7.5 mm)
Wire Gage: 30-14 AWG copper wire
Torque: 4.5 inch-lbs (0.51 N-m) max.
15. CONSTRUCTION: This unit is rated for NEMA 4X/IP65 indoor use. IP20
Touch safe. Installation Category II, Pollution Degree 2. One piece
bezel/case. Flame resistant. Panel Gasket and mounting clip included.
16. WEIGHT: 0.65 lbs (0.24 kg)
Class BEN 55011Emissions
Emissions:
0.5 cycle
Criterion AEN 61000-4-11Voltage dip/interruptions
30 A/m
Criterion AEN 61000-4-8Power frequency magnetic fields
3 V/rms
Criterion AEN 61000-4-6RF conducted interference
1 kV signal
1 kV L-L,
Criterion AEN 61000-4-5Surge
2 kV signal
2 kV power
Criterion AEN 61000-4-4Fast transients (burst)
2 kV L&N-E power
10 V/m
Criterion BEN 61000-4-3Electromagnetic RF fields
8 kV air discharge
4 kV contact discharge
Criterion AEN 61000-4-2Electrostatic discharge
Immunity to Industrial Locations:

E
4331-717-767-6511
The meter has switches that must be checked and/or changed prior to
applying power. To access the switches, remove the meter base from the case by
firmly squeezing and pulling back on the side rear finger tabs. This should lower
the latch below the case slot (which is located just in front of the finger tabs). It
is recommended to release the latch on one side, then start the other side latch.
Set-Up DIP Switches
Two banks of DIP switches are located inside the meter. The 10 position bank
of switches are used for calibrating the meter. The values of these switches are
discussed in section 5.0 Calibrating the Meter.
The bank of 4 switches located near the front display are used for the
selection of decimal points and backlight annunciator. Selecting “ON” position
enables the function.
2.0 SETTING THE SWITCHES
1.0 INSTALLING THE METER
Installation
The PAX meets NEMA 4X/IP65 requirements when properly installed. The
unit is intended to be mounted into an enclosed panel. Prepare the panel cutout
to the dimensions shown. Remove the panel latch from the unit. Slide the panel
gasket over the rear of the unit to the back of
the bezel. The unit should be installed
fully assembled. Insert the unit into
the panel cutout.
While holding the unit in place, push the panel latch over the rear of the unit
so that the tabs of the panel latch engage in the slots on the case. The panel latch
should be engaged in the farthest forward slot possible. To achieve a proper seal,
tighten the latch screws evenly until the unit is snug in the panel (Torque to
approximately 7 in-lbs [79N-cm]). Do not over-tighten the screws.
Installation Environment
The unit should be installed in a location that does not exceed the maximum
operating temperature and provides good air circulation. Placing the unit near
devices that generate excessive heat should be avoided.
The bezel should be cleaned only with a soft cloth and neutral soap product.
Do NOT use solvents. Continuous exposure to direct sunlight may accelerate the
aging process of the bezel.
PANEL CUT-OUT
Backlight Annunciator for Units Label4
Decimal Point 3 (0.000)3
Decimal Point 2 (00.00)2
Decimal Point 1 (000.0)1
FUNCTIONSWITCH
Main
Circuit
Board
D.P./ BACKLIGHT
REAR TERMINALS
FRONT DISPLAY
4
3
2
1
ON
OFFSET
SPAN
ON
1
2
3
4
5
6
7
8
9
10
OFFSET
SPAN

E
434 www.redlion.net
3.1 POWER WIRING
3.1 INPUT WIRING
AC Power
Terminal 1: VAC
Terminal 2: VAC
WIRING OVERVIEW
Electrical connections are made via screw-clamp terminals located on the
back of the meter. All conductors should conform to the meter’s voltage and
current ratings. All cabling should conform to appropriate standards of good
installation, local codes and regulations. It is recommended that power supplied
to the meter (AC) be protected by a fuse or circuit breaker.
When wiring the meter, compare the numbers embossed on the back of the
meter case against those shown in wiring drawings for proper wire position. Strip
the wire, leaving approximately 0.3" (7.5 mm) bare lead exposed (stranded wires
should be tinned with solder). Insert the lead under the correct screw-clamp
terminal and tighten until the wire is secure. (Pull wire to verify tightness.)
EMC INSTALLATION GUIDELINES
Although this meter is designed with a high degree of immunity to Electro-
Magnetic Interference (EMI), proper installation and wiring methods must be
followed to ensure compatibility in each application. The type of the electrical
noise, its source or the method of coupling into the unit may be different for
various installations. Listed below are some EMC guidelines for successful
installation in an industrial environment.
1. The meter should be mounted in a metal enclosure, which is properly
connected to protective earth.
2. Never run Signal or Control cables in the same conduit or raceway with AC
power lines, conductors feeding motors, solenoids, SCR controls, and
heaters, etc. The cables should be run in metal conduit that is properly
grounded. This is especially useful in applications where cable runs are long
and portable two-way radios are used in close proximity or if the installation
is near a commercial radio transmitter.
3. Signal or Control cables within an enclosure should be routed as far away as
possible from contactors, control relays, transformers, and other noisy
components.
4. In extremely high EMI environments, the use of external EMI suppression
devices, such as ferrite suppression cores, is effective. Install them on Signal
and Control cables as close to the unit as possible. Loop the cable through the
core several times or use multiple cores on each cable for additional protection.
Install line filters on the power input cable to the unit to suppress power line
interference. Install them near the power entry point of the enclosure. The
following EMI suppression devices (or equivalent) are recommended:
Ferrite Suppression Cores for signal and control cables:
Fair-Rite # 0443167251 (RLC #FCOR0000)
TDK # ZCAT3035-1330A
Steward #28B2029-0A0
Line Filters for input power cables:
Schaffner # FN610-1/07 (RLC #LFIL0000)
Schaffner # FN670-1.8/07
Corcom #1VR3
Note: Reference manufacturer’s instructions when installing a line filter.
5. Long cable runs are more susceptible to EMI pickup than short cable runs.
Therefore, keep cable runs as short as possible.
6. Switching of inductive loads produces high EMI. Use of snubbers across
inductive loads suppresses EMI.
Snubber: RLC#SNUB0000.
3.0 WIRING THE METER
Voltage Signal (2 wire)
Terminal 3: COMM
Terminal 4: INPUT
Voltage Signal (4 wire)
Terminal 3: COMM
Terminal 4: INPUT
Terminal 5: EXCITATION -
Terminal 6: EXCITATION +

E
4351-717-767-6511
SPAN ADJUSTMENTS
Span is defined as the numerical range that the display traverses, disregarding
decimal points, when the input signal is varied from minimum to maximum. For
example, if a unit is to display 25.0 @ 1 V and 100.0 @ 5 V, the span is 750 (the
difference between 250 and 1000). Had the minimum display been -25.0 @ 1 V
and +100.0 @ 5 V, the span would be 1250 (1000 - (-250) = 1250). (Note: the
terms “GAIN,” “SCALE,” and “SENSITIVITY” are also frequently used
interchangeably with the term “SPAN.”) The PAX Lite Process Volt Meter can
be set up over a very wide span range by means of the coarse DIP switches S6-
S10, and the fine screwdriver adjustment pot, located at the back cover. The
coarse span switches add parallel input resistors to the summing amplifier (K2),
thereby increasing its gain, or sensitivity, as
more summing resistors are added.
Effectively, adding more parallel input
resistors increases the slope of the transfer
curve (at right) and increases the numerical
readout for a given input signal change. The
input summing resistor values are weighted in
a binary progression, so they can be switched
in combinations to give 32 discrete steps of
span. The fine adjust control brackets these
coarse steps and can be adjusted to the exact
span needed.
The approximate span contributed by each switch is shown on the rear label.
The values shown are “units per volt.” For example, if S6 only is turned “ON,”
the numerical readout will change approximately 550 units for a signal voltage
change of 1 volt. If S7 were also turned “ON,” the numerical readout would
change approximately 825 units for a signal voltage change of 1 volt. The span
adjust pot has a continuous span range of approximately 0- 45.
OFFSET ADJUSTMENTS
Effectively, adding more parallel input
resistors increases the slope of the
transfer curve (at right) and increases the
numerical readout for a given input
signal change. In the foregoing
discussion of span, the transfer curves
were shown as “ZERO-BASED,” i.e.,
the numerical readout displays “0” when
the signal goes to zero. With voltage
ranges such as 0-5 V or 0-10 V, and with
Bi-Polar (+/-) signals this is often the
desired condition. However, with voltage
ranges such as 1-5 V or 1-10 V, the minimum voltage level usually represents
the zero level of the parameter being displayed. There are also many
applications where the minimum (or zero level) represents some value that does
not fall on a zero based transfer curve. To accommodate non-zero based
applications, the PAX Lite Process Volt Meter has provisions for offsetting the
transfer curve over a wide range. Essentially, offset moves the transfer curve up
or down to change its intercept with the numerical readout axis, but it does not
change the slope (SPAN) of the transfer curve. In the PAX Lite Process Volt
Meter, offset is accomplished by adding (or subtracting) a constant at the input
of the summing amplifier (K2). This offset constant is summed in with a
switched binary resistor network and a fine adjust offset control in a similar
manner to that used for span adjust. Switches S2-S5 can be turned on in
combinations to give 16 different coarse offset levels. Each switch is labeled to
show the approximate amount of offset contributed when it is turned “ON.”
Switch 1 selects the polarity of the switched-in offset value and allows
offsetting the transfer curve “UP” (adding the offset constant) or “DOWN”
(subtracting). The offset adjust pot has a numerical readout range of +/-100 and
brackets all the coarse switched ranges.
PAXLPV SCHEMATIC
DESCRIPTION OF OPERATION
The PAX Lite Process Volt Meter consists of a digital volt meter combined with an analog scaling circuit
(shown above). Input voltage can be reversed in polarity resulting in negative numerical readout with a minus
(-) sign displayed. Input terminals 3 and 4 are connected to the signal voltage. The buffer amplifier (K1)
conditions and filters the input signal voltage and applies it to the input of the scaling circuit. The procedure
for scaling PAX Lite Process Volt Meters is simplified by dividing the scaling process into two separate
components, span adjustments and offset adjustments which are defined in the following discussion.
4.0 SCALING THE METER

E
436 www.redlion.net
CALIBRATION STEPS
1. Power down the meter and remove it from its case. Turn off all offset and
span adjustment switches (S2-S10 down). S1 has no effect when zeroing
and can be in either position.
2. Turn the span control pot. fully counter-clockwise (20 turns max.).
3. Turn on a combination of span adjust switches (6-10) to obtain a total value
closest to (but not greater than) the SPAN PER VOLT desired (250 in this
example). The following chart gives an approximate span adjustment
value for each switch:
4. Place unit in its case and apply power. Apply zero volts. Adjust the
indicator to read zero using the offset adjustment pot.
5. Apply the SWING VOLTAGE (Vs) (4 V in this example) to the input. Set
the exact READOUT SPAN value (1000) with span adj. pot.
6. Apply zero volts to see if the zero value has shifted. If it has, re-zero with the
offset pot, then repeat Step 5.
7. After the span has been adjusted, set the signal voltage to the minimum level
(1 V in the example). Record the meter reading (in this example the reading
will be 250). Subtract the desired reading at minimum voltage value (0 in
the example) from the recorded reading (0-250 = - 250). Power down the
meter and remove it from its case. Set the offset add/subtract switch S1
(subtract = on), and the offset switches (S2-S5) to obtain a total value
closest to (but no more than) the difference between the desired reading at
minimum voltage value and the observed reading. The following chart
gives an approximate offset adjustment value for each switch:
Place the meter in its case and apply power. Using the offset adjust pot,
adjust the readout to equal the minimum voltage value (0 in the example).
8. Adjust the input signal voltage to its maximum value to see if the proper
readout is obtained (1000 @ 5 V in the example). If the readout is slightly
off, adjust the span pot to obtain the true reading. Then, recheck the reading
at the minimum input voltage (1 V) and readjust the offset pot if necessary.
Repeat the maximum and minimum readout adjustments until the unit
displays the proper readout at both extremes.
9. Set decimal points as desired using the three decimal point switches. The
unit can now be installed.
TROUBLESHOOTING
For further assistance, contact technical support at the appropriate company
numbers listed.
5.0 CALIBRATING THE METER
Direct calibration in the signal loop is usually not practical due to the
difficulty in varying the measured parameter and the confusing interaction that
occurs between span and offset adjustments. However, the PAXLPV can be
quickly and easily bench calibrated using a commercially available calibrator.
CALIBRATION PROCEDURE
The procedure outlined in the calibration steps below, minimizes span/offset
interaction and simplifies calibration. In Steps 1 to 4 the unit is “nulled” to zero
readout with zero input signal voltage. In Steps 5 and 6, the span adjustments
are made to establish the required slope of the transfer curve. Then in Step 7, the
transfer curve is shifted up or down as required by setting the offset adjustments.
In Step 8, the final “tweaking” adjustments are made at minimum and maximum
signal voltage. Setting the decimal points in Step 9 completes the calibration.
Before calibrating, the READOUT SPAN (Rs), SWING VOLTAGE (Vs), and
SPAN PER VOLT (Rs/Vs) must be determined.
WHERE:
Rs = (Max. Numerical Display) - (Min. Numerical Display) (Disregard Decimal Points)
Vs = (Voltage @ Max. Display) - (Voltage @ Min. Display)
Rs/Vs = READOUT SPAN (Rs)
SWING VOLTAGE (Vs)
Example:
Readout is to be 0.00 @ 1 V and 10.00 @ 5 V.
READOUT SPAN (Rs) = 1000 - 0 = 1000
SWING VOLTAGE (Vs) = 5 V - 1 V = 4 V
SPAN PER VOLT (Rs/Vs) = 1000 / 4 V = 250
SWITCH NUMBER SPAN VALUE
6550
7275
8140
975
10 40
SWITCH NUMBER OFFSET VALUE
21400
3700
4350
5175

E
4371-717-767-6511
Example 1 (± Display):
A differential pressure transducer has a range of ±15 PSI with a 1-6 V
output (-15 @ 1 V, +15 @ 6 V)
READOUT SPAN (Rs) = +1500 - (-1500) = 3000
SWING VOLTAGE (Vs) = 6 V (max) - 1 V (min) = 5 V
SPAN PER VOLT (Rs/Vs) = 3000 / 5 V = 600
Note: Since the display readout is limited to 1999 numerical indication, the
full READOUT SPAN of 3000 cannot be obtained during zero based span
adjustment. However, dividing both the READOUT SPAN and SWING
VOLTAGE by two, i.e. 1500 readout @ 2.5 V, allows the span adjustment
to be made for the proper transfer curve slope.
ADJUSTMENTS
Null the unit to zero readout @ 0 V per
Steps 1 to 4 of the calibration steps.
Set transfer curve slope with span
adjustments per Steps 5 and 6 to get a
readout of +1500 @ 2.5 V (SPAN PER
VOLT = 600).
Apply (-) offset per Step 7 to get a
reading of -1500 @ 1 V.
Check min. and max. extremes and tweak
if required to get desired readout @ 1 V
and 6 V per step 8. Set D.P. switch S2
and replace unit in case.
Example 2 (Positive Offset):
PAXLPV is to be calibrated to match a flow transducer whose output is 0
V @ 40 GPM and 5 V @ 650 GPM.
READOUT SPAN (Rs) = 650 - 40 = 610
SWING VOLTAGE (Vs) = 5 V (max) - 0 V (min) = 5 V
SPAN PER VOLT (Rs/Vs) = 610 / 5 V = 122
ADJUSTMENTS
Null the unit per Steps 1 to 4 of the
calibration steps.
Set the coarse and fine span adjustments
to get a readout of 610 @ 5 V (SPAN PER
VOLT = 122) per Steps 5 and 6.
Set offset to readout 40 @ 0 V per Step 7.
Check the readout @ max. (5 V) and min.
(0 V) and fine tune (tweak) as required
per Step 8.
Example 3 (Negative Slope):
A liquid level sensor puts out 1 V when a storage tank is full and 11 V
when the tank is empty. The PAXLPV is to read out 100.0 when the tank is
full and zero when the tank is empty.
READOUT SPAN (Rs) = 1000 - 0 = 1000
SWING VOLTAGE (Vs) = 1 V (max) - 11 V (min) = -10 V
SPAN PER VOLT (Rs/Vs) = 1000 / -10 V = -100
In this case, the signal voltage is reversed [Term. 3 (+) with respect to Term.
4 (-)] causing the readout to go “down” (increasingly negative) as the
negative voltage increases (hence, the negative (-) SPAN PER VOLT).
ADJUSTMENTS
Null the unit per Steps 1 to 4 of the
calibration steps.
Set the slope of the transfer curve with the
span adjustments to get a readout of -1000
@ -10V (SPAN PER VOLT =
-100) per Steps 5 and 6.
Move the transfer curve up by applying (+)
offset per Step 7 until readout is +1000 @
-1 V.
Check extreme readings per Step 8 0
readout @ -11 V and +1000 @ -1 V. Set
D.P. switch S1 ON and replace unit in case.
6.0 APPLICATIONS

E
438 www.redlion.net
MODEL DP5P - PROCESS INPUT
This is a brief overview of the DP5P. For complete specifications and programming information, see the
DP5 Analog Input Panel Meters Bulletin starting on page 358.
DUAL RANGE INPUT (20 mA or 10 VDC)
5-DIGIT 0.56" HIGH RED LED DISPLAY
PROGRAMMABLE FUNCTION KEYS/USER INPUT
24 VDC TRANSMITTER POWER
NEMA 4X/IP65 SEALED FRONT BEZEL
DP5P SPECIFICATIONS
SENSOR INPUTS:
* After 20 minute warm-up. Accuracy is specified in two ways: Accuracy over an 18
to 28°C and 10 to 75% RH environment; and accuracy over a 0 to 50°C and 0 to
85%RH (non-condensing environment). Accuracy over the 0 to 50°C range
includes the temperature coefficient effect of the meter.
EXCITATION POWER:
Transmitter Power: 24 VDC, ±5%, regulated, 50 mA max.
INPUT
(RANGE)
ACCURACY*
(18 to 28°C)
ACCURACY*
(0 to 50°C)
IMPEDANCE/
COMPLIANCE
MAX
CONTINUOUS
OVERLOAD
DISPLAY
RESOLUTION
20 mA
(-2 to 26 mA)
0.03% of
reading +2 μA
0.12% of
reading +3 μA20 ohm 150 mA 1 μA
10 VDC
(-1 to 13 VDC)
0.03% of
reading +2 mV
0.12% of
reading +3 mV 500 Kohm 300 V 1 mV
C
C
US LISTED
US LISTED
UL
R
IND. CONT. EQ.
51EB

E
4391-717-767-6511
MODEL PAXP - PROCESS INPUT
This is a brief overview of the DP5P. For complete specifications and programming information, see the
PAX Analog Input Panel Meters Bulletin starting on page 378.
5-DIGIT 0.56" RED SUNLIGHT READABLE OR STANDARD
GREEN DISPLAY
DUAL RANGE INPUT (20 mA or 10 VDC)
24 VDC TRANSMITTER POWER
FOUR SETPOINT ALARM OUTPUTS (W/OPTION CARD)
RETRANSMITTED ANALOG OUTPUT (W/OPTION CARD)
COMMUNICATION AND BUS CAPABILITIES (W/OPTION CARD)
CRIMSON PROGRAMMING SOFTWARE
PAXP SPECIFICATIONS
SENSOR INPUTS:
* After 20 minute warm-up. Accuracy is specified in two ways: Accuracy over an 18
to 28°C and 10 to 75% RH environment; and accuracy over a 0 to 50°C and 0 to
85%RH (non-condensing environment). Accuracy over the 0 to 50°C range
includes the temperature coefficient effect of the meter.
EXCITATION POWER:
Transmitter Power: 24 VDC, ±5%, regulated, 50 mA max.
INPUT
(RANGE)
ACCURACY*
(18 to 28°C)
ACCURACY*
(0 to 50°C)
IMPEDANCE/
COMPLIANCE
MAX
CONTINUOUS
OVERLOAD
DISPLAY
RESOLUTION
20 mA
(-2 to 26 mA)
0.03% of
reading +2 μA
0.12% of
reading +3 μA20 ohm 150 mA 1 μA
10 VDC
(-1 to 13 VDC)
0.03% of
reading +2 mV
0.12% of
reading +3 mV 500 Kohm 300 V 1 mV
C
C
US LISTED
US LISTED
UL
R
IND. CONT. EQ.
51EB

E
440 www.redlion.net
zACCEPTS TWO 4 - 20 mA OR 0 - 10 VDC INPUT SIGNALS
zPROGRAMMABLE A/D CONVERSION RATE, 5 TO 105
READINGS PER SECOND
z5-DIGIT 0.56" RED SUNLIGHT READABLE DISPLAY
zVARIABLE INTENSITY DISPLAY
zLINEARIZATION/SQUARE ROOT EXTRACTION INPUT RANGE
zPROGRAMMABLE FUNCTION KEYS/USER INPUTS
z9 DIGIT TOTALIZER (INTEGRATOR) WITH BATCHING
zOPTIONAL CUSTOM UNITS OVERLAY W/BACKLIGHT
zFOUR SETPOINT ALARM OUTPUTS (W/OPTION CARD)
zCOMMUNICATION AND BUS CAPABILITIES (W/OPTION CARD)
zRETRANSMITTED ANALOG OUTPUT (W/OPTION CARD)
zNEMA 4X/IP65 SEALED FRONT BEZEL
zPC SOFTWARE AVAILABLE FOR METER CONFIGURATION
GENERAL DESCRIPTION
The PAXDP Dual Process Input Meter offers many features and performance
capabilities to suit a wide range of industrial applications. Available in two
models, AC or DC power, the meter has the capability to accept two, 4 to 20 mA
or 0 to 10 VDC input signals. Each input signal can be independently scaled and
displayed. In addition, a math function can be performed on the two signals, C +
A + B, C - A - B, C + A - B, AB / C, CA / B, or C (A / B - 1). Any of the three
meter values can have Alarms, Comms, and/or a Retransmitted Analog Output
capability by simply adding optional cards. The optional plug-in output cards
allow the opportunity to configure the meter for current applications, while
providing easy upgrades for future needs.
The update rate of the meter is user selectable. This will help in those
applications where a quick response from the meter is of the utmost importance.
The rate can be adjusted from eight selections with a minimum of 5
updates/second to a maximum of 105 updates/second.
The meters employ a bright 0.56" (14.2 mm) red sunlight readable LED
display. The intensity of display can be adjusted from dark room applications up
to sunlight readable, making it ideal for viewing in bright light applications.
The meters provide a MAX and MIN reading memory with programmable
capture time. The capture time is used to prevent detection of false max or min
readings which may occur during start-up or unusual process events.
The signal totalizer (integrator) can be used to compute a time-input product.
This can be used to provide a readout of totalized flow, calculate service intervals
of motors or pumps, etc. The totalizer can also accumulate batch operations.
The meter has four setpoint outputs, implemented on Plug-in option cards.
The Plug-in cards provide dual FORM-C relays (5A), quad FORM-A (3A), or
either quad sinking or quad sourcing open collector logic outputs. The setpoint
alarms can be configured to suit a variety of control and alarm requirements.
Communication and Bus Capabilities are also available as option cards. The
standard output is in Modbus Protocol. Any of the following option cards,
RS232, RS485, DeviceNet, or Profibus can be used with the meter. Readout
values and setpoint alarm values can be controlled through the bus.
Additionally, the meters have a feature that allows a remote computer to directly
control the outputs of the meter.
A linear DC output signal is available as an optional Plug-in card. The card
provides either 20 mA or 10 V signals. The output can be scaled independent of
the input range and can track either the input, totalizer, max/min readings, or
math calculation value.
Once the meters have been initially configured, the parameter list may be
locked out from further modification in its entirety or only the setpoint values
can be made accessible.
The meters have been specifically designed for harsh industrial environments.
With NEMA 4X/IP65 sealed bezel and extensive testing of noise effects to CE
requirements, the meter provides a tough yet reliable application solution.
SAFETY SUMMARY
All safety related regulations, local codes and instructions that appear in this
literature or on equipment must be observed to ensure personal safety and to
prevent damage to either the instrument or equipment connected to it. If
equipment is used in a manner not specified by the manufacturer, the protection
provided by the equipment may be impaired.
Do not use this unit to directly command motors, valves, or other actuators
not equipped with safeguards. To do so can be potentially harmful to persons or
equipment in the event of a fault to the unit.
MODEL PAXDP – 1/8 DIN DUAL PROCESS INPUT METER
DIMENSIONS In inches (mm) Note: Recommended minimum clearance (behind the panel) for mounting clip installation is
2.1" (53.4) H x 5.0" (127) W.
CAUTION: Risk of Danger.
Read complete instructions prior to
installation and operation of the unit.
CAUTION: Risk of electric shock.
C
C
US LISTED
US LISTED
UL
R
IND. CONT. EQ.
51EB

E
4411-717-767-6511
Accessories
Ordering Information . . . . . . . . . . . . . . . . . . 2
General Meter Specifications . . . . . . . . . . . . 3
Accessories . . . . . . . . . . . . . . . . . . . . . . . . . 4
Optional Plug-In Cards . . . . . . . . . . . . . . . . . 5
Installing the Meter . . . . . . . . . . . . . . . . . . . . 6
Setting the Jumpers . . . . . . . . . . . . . . . . . . . 6
Wiring the Meter . . . . . . . . . . . . . . . . . . . . . . 7
Reviewing the Front Buttons and Display . . . 9
Programming the Meter . . . . . . . . . . . . . . . 10
Factory Service Operations . . . . . . . . . . . . 30
Parameter Value Chart . . . . . . . . . . . . . . . . 32
Programming Overview . . . . . . . . . . . . . . . 34
TABLE OFCONTENTS
ORDERING INFORMATION
PAX 0
DP - Dual Process Input
0 - Red, Sunlight Readable Display
0 - 85 to 250 VAC
1 - 18 to 36 VDC, 24 VAC
Meter Part Numbers
Option Card and Accessories Part Numbers
Accessories SFCRD200
PAXLBK10
Crimson®2 PC Configuration Software for Windows 98, ME, 2000, XP 2
Units Label Kit Accessory
SFCRD
PAXLBK
PAXCDC30DeviceNet Communications Card
Optional
Plug-In
Cards
PAXCDC50
PAXCDL10
Profibus-DP Communications Card
Analog Output CardPAXCDL
PAXCDC2C
PAXCDC20
Extended RS232 Serial Communications Output Card with 9 Pin D Connector
RS232 Serial Communications Output Card with Terminal Block
PAXCDC1C
PAXCDC10
PAXCDC
PAXCDS40Quad Setpoint Sourcing Open Collector Output Card
PAXCDS30Quad Setpoint Sinking Open Collector Output Card
PAXCDS20Quad Setpoint Relay Output Card
TYPE
PAXCDS10Dual Setpoint Relay Output Card
PAXCDS
PART NUMBERSDESCRIPTIONMODEL NO.
RS485 Serial Communications Output Card with Terminal Block
Extended RS485 Serial Communications Output Card with Dual RJ11 Connector
Notes:
1. For Modbus communications use RS485 Communications Output Card and configure communication (U:1&) parameter for Modbus.
2. Crimson®2 software is available as a free download at http://www.redlion.net/

E
442 www.redlion.net
GENERAL METER SPECIFICATIONS
1. DISPLAY: 5 digit, 0.56" (14.2 mm) variable intensity red sunlight readable
(-19999 to 99999)
2. POWER:
AC Versions:
AC Power: 85 to 250 VAC, 50/60 Hz, 21 VA
Isolation: 2300 Vrms for 1 min. to all inputs and outputs.
DC Versions: (Derate operating temperature to 40° C if three plug-in option
cards or PAXCDC50 are installed.)
DC Power: 18 to 36 VDC, 13 W
AC Power: 24 VAC, ± 10%, 50/60 Hz, 16 VA
Isolation: 500 Vrms for 1 min. to all inputs and outputs (50 V working).
Must use a Class 2 or SELV rated power supply
3. ANNUNCIATORS:
A - Programmable Display
B - Programmable Display
C - Programmable Display
SP1 - Setpoint alarm 1 is active
SP2 - Setpoint alarm 2 is active
SP3 - Setpoint alarm 3 is active
SP4 - Setpoint alarm 4 is active
Units Label - Optional units label backlight
4. KEYPAD: 3 programmable function keys, 5 keys total
5. A/D CONVERTER: 16 bit resolution
6. UPDATE RATES:
A/D conversion rate: Adjustable 5.3 to 105 readings/sec.
Step response: (to within 99% of final readout value with digital filter disabled)
Display update rate: adjustable 1 to 20 readings/sec.
Setpoint output on/off delay time: 0 to 3275 sec.
Analog output update rate: 0 to 10 sec
Max./Min. capture delay time: 0 to 3275 sec.
7. DISPLAY MESSAGES:
“OLOL” - Appears when measurement exceeds + signal range.
“ULUL” - Appears when measurement exceeds - signal range
“. . . .” - Appears when display values exceed + display range.
“- . . .” - Appears when display values exceed - display range.
8. SENSOR INPUTS:
* After 20 minute warm-up. Accuracy is specified in two ways: Accuracy over
an 18 to 28°C and 10 to 75% RH environment; and accuracy over a 0 to 50°C
and 0 to 85% RH (non-condensing environment). Accuracy over the 0 to
50°C range includes the temperature coefficient effect of the meter.
9. EXCITATION POWER:
Transmitter Power: 18 VDC, ±20%, unregulated, 70 mA max. per
input channel.
10. LOW FREQUENCY NOISE REJECTION:
Normal Mode: (digital filter off)
*Note: 19.8 Hz Input Rate provides best rate performance and
simultaneous 50/60 Hz rejection.
Common Mode: >100 dB @ 50/60 ±1 Hz (19.8 or 20 Input Rate)
11. USER INPUTS: Three programmable user inputs
Max. Continuous Input: 30 VDC
Isolation To Sensor Input A Common: 500 Vrms for 1 min;
Working Voltage: 50 V
Isolation To Sensor Input B Common: Not isolated.
Response Time: 20 msec. max.
Logic State: Jumper selectable for sink/source logic
12. TOTALIZER:
Function:
Time Base: second, minute, hour, or day
Batch: Can accumulate (gate) input display from a user input
Time Accuracy: 0.01% typical
Decimal Point: 0 to 0.0000
Scale Factor: 0.001 to 65.000
Low Signal Cut-out: -19,999 to 99,999
Total: 9 digits, display alternates between high order and low order readouts
13. CUSTOM LINEARIZATION:
Data Point Pairs: Selectable from 2 to 16
Display Range: -19,999 to 99,999
Decimal Point: 0 to 0.0000
14. MEMORY: Nonvolatile memory retains all programmable parameters and
display values.
15. CERTIFICATIONS AND COMPLIANCES:
SAFETY
UL Recognized Component, File #E179259, UL61010A-1, CSA C22.2
No. 61010-1
Recognized to U.S. and Canadian requirements under the Component
Recognition Program of Underwriters Laboratories, Inc.
UL Listed, File #E137808, UL508, CSA C22.2 No. 14-M95
LISTED by Und. Lab. Inc. to U.S. and Canadian safety standards
Type 4X Enclosure rating (Face only), UL50
IECEE CB Scheme Test Certificate #US/8843A/UL
CB Scheme Test Report #04ME11209-20041018
Issued by Underwriters Laboratories, Inc.
IEC 61010-1, EN 61010-1: Safety requirements for electrical
equipment for measurement, control, and laboratory use, Part 1.
IP65 Enclosure rating (Face only), IEC 529
IP20 Enclosure rating (Rear of unit), IEC 529
VIN > 3.6 VDC VIN < 0.9 VDC
Inactive
VIN < 0.9 VDC VIN > 3.6 VDC
Active
SINKING INPUTS
22 KΩΩpull-up to +5 V
SOURCING INPUTS
22 KΩΩpull-down
INPUT STATE
INPUT
(RANGE)
ACCURACY*
(18 to 28°C)
ACCURACY*
(0 to 50°C)
IMPEDANCE/
COMPLIANCE
MAX
CONTINUOUS
OVERLOAD
DISPLAY
RESOLUTION
±20 mA
(-26 to
26 mA)
0.03% of
reading +2 μA
0.12% of
reading +3 μA24.6 ohm 90 mA 1 μA
±10 VDC
(-13 to
13 VDC)
0.03% of
reading +2 mV
0.12% of
reading +3 mV 500 Kohm 50 V 1 mV
INPUT UPDATE RATE MAX. TIME (msec)
5.3 770
7.5 560
16.7 260
19.8 220
20 220
30 150
105 60
INPUT UPDATE RATE 50 Hz ±1 Hz 60 Hz ±1 Hz
5.3 >90 dB >65 dB
7.5 >60 dB >55 dB
16.7 >100 dB >50 dB
19.8* >60 dB >95 dB
20 >55 dB >100 dB
30 >20 dB >20 dB
105 >20 dB >13 dB

E
4431-717-767-6511
ACCESSORIES
UNITS LABEL KIT (PAXLBK)
Each meter has a units indicator with backlighting that can be customized
using the Units Label Kit. The backlight is controlled in the programming.
PROGRAMMING SOFTWARE
The Crimson®2 (SFCRM2) software is a Windows®based program for
configuring and updating the firmware of the PAXDP meter from a PC. Using
the software makes programming the PAXDP meter easier and allows the user
to save the PAXDP database in a PC file for future use. The software is available
as a free download from Red Lion’s website, or it can be purchased on CD.
The first time Crimson®2 software is run from the File menu, select “New”
to display a dialog and select the PAXDP. The screen will display icons that
represent the various programming sections of the PAXDP. Double-click on an
icon to configure the programming parameters pertaining to the selection. Tool
Tip help is available for each of the program parameters. A PAX®serial plug-
in card is required to program the meter using the software.
When communicating with Crimson®2 software, the PAXDP must be set in
default configuration type of:
Communications Type: MODBUS RTU
Baud Rate: 38400
Data Bit: 8
ParityBit: no
Meter Unit Address: 247
15. CERTIFICATIONS AND COMPLIANCES (Cont’d):
ELECTROMAGNETIC COMPATIBILITY
Emissions and Immunity to EN 61326: Electrical Equipment for
Measurement, Control and Laboratory use.
Notes:
1. Criterion A: Normal operation within specified limits.
2. Criterion B: Temporary loss of performance from which the unit self-
recovers.
Refer to EMC Installation Guidelines section of the bulletin for additional
information.
16. ENVIRONMENTAL CONDITIONS:
Operating Temperature Range: 0 to 50°C (0 to 45°C with all three plug-in
option cards installed)
Storage Temperature Range: -40 to 60°C
Operating and Storage Humidity: 0 to 85% max. RH non-condensing
Altitude: Up to 2000 meters
17. CONNECTIONS: High compression cage-clamp terminal block
Wire Strip Length: 0.3" (7.5 mm)
Wire Gage: 30-14 AWG copper wire
Torque: 4.5 inch-lbs (0.51 N-m) max.
18. CONSTRUCTION: This unit is rated for NEMA 4X/IP65 outdoor use.
IP20 Touch safe. Installation Category II, Pollution Degree 2. One piece
bezel/case. Flame resistant. Synthetic rubber keypad. Panel gasket and
mounting clip included.
19. WEIGHT: 10.4 oz. (295 g)
Immunity to Industrial Locations:
Electrostatic discharge EN 61000-4-2 Criterion A
4 kV contact discharge
8 kV air discharge
Electromagnetic RF fields EN 61000-4-3 Criterion A
10 V/m
2 kV L&N-E power
Fast transients (burst) EN 61000-4-4 Criterion A
2 kV power
1 kV signal
Voltage dip/interruptions
Surge
EN 61000-4-11
EN 61000-4-5
Criterion A
Criterion A
0.5 cycle
1 kV L-L,
DC powered
RF conducted interference EN 61000-4-6 Criterion A
3 V/rms
EN 55011 Class A
Emissions:
AC powered EN 55011 Class B

E
444 www.redlion.net
WARNING: Disconnect all power to the unit before
installing Plug-in cards.
Adding Option Cards
The PAX and MPAX series meters can be fitted with up to three optional plug-
in cards. The details for each plug-in card can be reviewed in the specification
section below. Only one card from each function type can be installed at one time.
The function types include Setpoint Alarms (PAXCDS), Communications
(PAXCDC), and Analog Output (PAXCDL). The plug-in cards can be installed
initially or at a later date.
COMMUNICATION CARDS (PAXCDC)
A variety of communication protocols are available for the PAX and MPAX
series. Only one of these cards can be installed at a time. Note: For Modbus
communications use RS485 Communications Output Card and configure
communication () parameter for Modbus.
SERIAL COMMUNICATIONS CARD
Type: RS485 or RS232
Communication Type: RLC Protocol (ASCII), Modbus RTU, and Modbus
ASCII
Isolation To Sensor & User Input Commons: 500 Vrms for 1 min.
Working Voltage: 50 V. Not Isolated from all other commons.
Baud: 300 to 38,400
Data: 7/8 bits
Parity: no, odd or even
Bus Address: Selectable 0 to 99 (RLC Protocol), or 1 to 247 (Modbus
Protocol), Max. 32 meters per line (RS485)
Transmit Delay: Selectable for 0 to 0.250 sec (+2 msec min)
DEVICENET™ CARD
Compatibility: Group 2 Server Only, not UCMM capable
Baud Rates: 125 Kbaud, 250 Kbaud, and 500 Kbaud
Bus Interface: Phillips 82C250 or equivalent with MIS wiring protection per
DeviceNet™ Volume I Section 10.2.2.
Node Isolation: Bus powered, isolated node
Host Isolation: 500 Vrms for 1 minute (50 V working) between DeviceNet™
and meter input common.
PROFIBUS-DP CARD
Fieldbus Type: Profibus-DP as per EN 50170, implemented with Siemens
SPC3 ASIC
Conformance: PNO Certified Profibus-DP Slave Device
Baud Rates: Automatic baud rate detection in the range 9.6 Kbaud to 12 Mbaud
Station Address: 0 to 126, set by the master over the network. Address stored
in non-volatile memory.
Connection: 9-pin Female D-Sub connector
Network Isolation: 500 Vrms for 1 minute (50 V working) between Profibus
network and sensor and user input commons. Not isolated from all other
commons.
SETPOINT CARDS (PAXCDS)
The PAX and MPAX series has 4 available setpoint alarm output plug-in
cards. Only one of these cards can be installed at a time. (Logic state of the
outputs can be reversed in the programming.) These plug-in cards include:
PAXCDS10 - Dual Relay, FORM-C, Normally open & closed
PAXCDS20 - Quad Relay, FORM-A, Normally open only
PAXCDS30 - Isolated quad sinking NPN open collector
PAXCDS40 - Isolated quad sourcing PNP open collector
DUAL RELAY CARD
Type: Two FORM-C relays
Isolation To Sensor & User Input Commons: 2000 Vrms for 1 min.
Working Voltage: 240 Vrms
Contact Rating:
One Relay Energized: 5 amps @ 120/240 VAC or 28 VDC (resistive load),
1/8 HP @120 VAC, inductive load
Total current with both relays energized not to exceed 5 amps
Life Expectancy: 100 K cycles min. at full load rating. External RC snubber
extends relay life for operation with inductive loads
QUAD RELAY CARD
Type: Four FORM-A relays
Isolation To Sensor & User Input Commons: 2300 Vrms for 1 min.
Working Voltage: 250 Vrms
Contact Rating:
One Relay Energized: 3 amps @ 240 VAC or 30 VDC (resistive load), 1/10
HP @120 VAC, inductive load
Total current with all four relays energized not to exceed 4 amps
Life Expectancy: 100 K cycles min. at full load rating. External RC snubber
extends relay life for operation with inductive loads
QUAD SINKING OPEN COLLECTOR CARD
Type: Four isolated sinking NPN transistors.
Isolation To Sensor & User Input Commons: 500 Vrms for 1 min.
Working Voltage: 50 V. Not Isolated from all other commons.
Rating: 100 mA max @ VSAT = 0.7 V max. VMAX = 30 V
QUAD SOURCING OPEN COLLECTOR CARD
Type: Four isolated sourcing PNP transistors.
Isolation To Sensor & User Input Commons: 500 Vrms for 1 min.
Working Voltage: 50 V. Not Isolated from all other commons.
Rating: Internal supply: 24 VDC ± 10%, 30 mA max. total
External supply: 30 VDC max., 100 mA max. each output
ALL FOUR SETPOINT CARDS
Response Time: See update rates step response specification; add 6 msec
(typical) for relay card
LINEAR DC OUTPUT (PAXCDL)
Either a 0(4)-20 mA or 0-10 V retransmitted linear DC output is available
from the analog output plug-in card. The programmable output low and high
scaling can be based on various display values. Reverse slope output is possible
by reversing the scaling point positions.
PAXCDL10 - Retransmitted Analog Output Card
ANALOG OUTPUT CARD
Types: 0 to 20 mA, 4 to 20 mA or 0 to 10 VDC
Isolation To Sensor & User Input Commons: 500 Vrms for 1 min.
Working Voltage: 50 V. Not Isolated from all other commons.
Accuracy: 0.17% of FS (18 to 28°C); 0.4% of FS (0 to 50°C)
Resolution: 1/3500
Compliance: 10 VDC: 10 KΩload min., 20 mA: 500 Ωload max.
Powered: Self-powered
Step Response: See update rates step response specification
Update time: See ADC Conversion Rate and Update Time parameter
OPTIONAL PLUG-IN OUTPUT CARDS
PAXCDC10 - RS485 Serial (Terminal Block)
PAXCDC30 - DeviceNet
PAXCDC20 - RS232 Serial (Terminal Block)
PAXCDC1C - RS485 Serial (Dual RJ11 Connector)
PAXCDC50 - Profibus-DP
PAXCDC2C - RS232 Serial (9 Pin D Connector)

E
4451-717-767-6511
Installation
The PAX meets NEMA 4X/IP65 requirements when properly installed. The
unit is intended to be mounted into an enclosed panel. Prepare the panel cutout to
the dimensions shown. Remove the panel latch from the unit. Slide the panel
gasket over the rear of the unit to the
back of the bezel. The unit should be
installed fully assembled. Insert
the unit into the panel cutout.
While holding the unit in place, push the panel latch over the rear of the unit
so that the tabs of the panel latch engage in the slots on the case. The panel latch
should be engaged in the farthest forward slot possible. To achieve a proper seal,
tighten the latch screws evenly until the unit is snug in the panel (Torque to
approximately 7 in-lbs [79N-cm]). Do not over-tighten the screws.
Installation Environment
The unit should be installed in a location that does not exceed the maximum
operating temperature and provides good air circulation. Placing the unit near
devices that generate excessive heat should be avoided.
The bezel should be cleaned only with a soft cloth and neutral soap product.
Do NOT use solvents. Continuous exposure to direct sunlight may accelerate the
aging process of the bezel.
Do not use tools of any kind (screwdrivers, pens, pencils, etc.) to operate the
keypad of the unit.
PANEL CUT-OUT
1.0 INSTALLING THE METER
2.0 SETTING THE JUMPERS
The meter has three jumpers that must be checked and/or changed prior to
applying power. The following Jumper Selection Figures show an enlargement
of the jumper area.
To access the jumpers, remove the meter base from the case by firmly
squeezing and pulling back on the side rear finger tabs. This should lower the
latch below the case slot (which is located just in front of the finger tabs). It is
recommended to release the latch on one side, then start the other side latch.
Input Jumpers
These jumpers are used to select the proper input types, Voltage (V) or Current
(I). The input type selected in programming must match the jumper setting. See
the Jumper Selection Figures for more details.
User Input Logic Jumper
This jumper selects the logic state of all the user inputs. If the user inputs are
not used, it is not necessary to check or move this jumper.
PAXDP Jumper Selection
JUMPER SELECTIONS
The indicates factory setting.
REAR TERMINALS
(CURRENT) I
FRONT DISPLAY
INPUT JUMPER LOCATIONS USER INPUT
JUMPER
LOCATION
(VOLTAGE) V
INPUT A
INPUT B
V
I
Note: In the figures above, the text shown in parenthesis is printed on the
circuit board to help with proper jumper positioning.

E
446 www.redlion.net
WIRING OVERVIEW
Electrical connections are made via screw-clamp terminals located on the
back of the meter. All conductors should conform to the meter’s voltage and
current ratings. All cabling should conform to appropriate standards of good
installation, local codes and regulations. It is recommended that power supplied
to the meter (DC or AC) be protected by a fuse or circuit breaker.
When wiring the meter, compare the numbers embossed on the back of the
meter case against those shown in wiring drawings for proper wire position.
Strip the wire, leaving approximately 0.3" (7.5 mm) bare lead exposed (stranded
wires should be tinned with solder). Insert the lead under the correct screw-
clamp terminal and tighten until the wire is secure. (Pull wire to verify
tightness.) Each terminal can accept up to one #14 AWG (2.55 mm) wire, two
#18 AWG (1.02 mm), or four #20 AWG (0.61 mm).
EMC INSTALLATION GUIDELINES
Although this meter is designed with a high degree of immunity to Electro-
Magnetic Interference (EMI), proper installation and wiring methods must be
followed to ensure compatibility in each application. The type of the electrical
noise, its source or the method of coupling into the unit may be different for
various installations. Listed below are some EMC guidelines for successful
installation in an industrial environment.
1. The meter should be mounted in a metal enclosure, which is properly
connected to protective earth.
2. With use of the lower input ranges or signal sources with high source
impedance, the use of shielded cable may be necessary. This helps to guard
against stray AC pick-up. Attach the shield to the input common of the meter.
3. To minimize potential noise problems, power the meter from the same power
branch, or at least the same phase voltage as that of the signal source.
4. Never run Signal or Control cables in the same conduit or raceway with AC
power lines, conductors feeding motors, solenoids, SCR controls, and
heaters, etc. The cables should be run in metal conduit that is properly
grounded. This is especially useful in applications where cable runs are long
and portable two-way radios are used in close proximity or if the installation
is near a commercial radio transmitter.
5. Signal or Control cables within an enclosure should be routed as far away as
possible from contactors, control relays, transformers, and other noisy
components.
6. In extremely high EMI environments, the use of external EMI suppression
devices, such as ferrite suppression cores, is effective. Install them on Signal
and Control cables as close to the unit as possible. Loop the cable through the
core several times or use multiple cores on each cable for additional protection.
Install line filters on the power input cable to the unit to suppress power line
interference. Install them near the power entry point of the enclosure. The
following EMI suppression devices (or equivalent) are recommended:
Ferrite Suppression Cores for signal and control cables:
Fair-Rite # 0443167251 (RLC #FCOR0000)
TDK # ZCAT3035-1330A
Steward #28B2029-0A0
Line Filters for input power cables:
Schaffner # FN610-1/07 (RLC #LFIL0000)
Schaffner # FN670-1.8/07
Corcom #1VR3
Note: Reference manufacturer’s instructions when installing a line filter.
7. Long cable runs are more susceptible to EMI pickup than short cable runs.
Therefore, keep cable runs as short as possible.
8. Switching of inductive loads produces high EMI. Use of snubbers across
inductive loads suppresses EMI.
Snubber: RLC#SNUB0000.
3.0 WIRING THE METER
3.1 POWER WIRING
AC Power
Terminal 1: VAC
Terminal 2: VAC
DC Power
Terminal 1: +VDC
Terminal 2: -VDC
3.2 INPUT SIGNAL WIRING
Current Signal
(self powered)
Terminal 4: -ADC
Terminal 5: +ADC
Voltage Signal
(self powered)
Terminal 4: -VDC
Terminal 5: +VDC
Current Signal (2 wire
requiring excitation)
Terminal 3: +ADC
Terminal 5: -ADC
INPUT A SIGNAL WIRING
Voltage/Current Signal (3 wire requiring excitation)
Terminal 3: +Volt supply
Terminal 4: -ADC (common)
Terminal 5: +ADC (signal)
Before connecting signal wires, the Input Range Jumper must be verified for proper position.

E
4471-717-767-6511
Sinking Logic
Terminal 9:
Terminal 10-11:}
In this logic, the user inputs of the meter
are internally pulled up to +5 V with 22
K resistance. The input is active when it
is pulled low (<0 .9 V).
3.3 USER INPUT WIRING
Before connecting the wires, the User Input Logic Jumper should be verified for proper position. If not using User
Inputs, then skip this section. Only the appropriate User Input terminal has to be wired.
Sourcing Logic
Terminal 9: -VDC thru external switching device
Terminal 10-11: + VDC thru external switching device
In this logic, the user inputs of the meter are internally
pulled down to 0 V with 22 K resistance. The input is
active when a voltage greater than 3.6 VDC is applied.
Connect external switching device between
appropriate User Input terminal and User Comm.
CAUTION: Sensor Input B common is NOT isolated from user input common. In order to preserve the safety of the meter application, the sensor input
common must be suitably isolated from hazardous live earth referenced voltages; or input common must be at protective earth ground potential. If not,
hazardous live voltage may be present at the User Inputs and User Input Common terminals. Appropriate considerations must then be given to the
potential of the user input common with respect to earth common; and the common of the isolated plug-in cards with respect to input common.
Current Signal
(self powered)
Terminal 7: -ADC
Terminal 8: +ADC
Voltage Signal
(self powered)
Terminal 7: -VDC
Terminal 8: +VDC
Current Signal (2 wire
requiring excitation)
Terminal 6: +ADC
Terminal 8: -ADC
INPUT B SIGNAL WIRING
Voltage/Current Signal (3 wire requiring excitation)
Terminal 6: +Volt supply
Terminal 7: -ADC (common)
Terminal 8: +ADC (signal)
3.4 SETPOINT (ALARMS) WIRING
SETPOINT PLUG-IN CARD TERMINALS
SINKING OUTPUT LOGIC CARD
SOURCING OUTPUT LOGIC CARD

E
448 www.redlion.net
*Display Readout Legends may be locked out in Factory Settings.
** Factory setting for the F1, F2, and RST keys is NO mode.
RST
F2
F1
PAR
DSP
KEY
Hold with F1, F2to scroll value by x1000
Reset (Function key)**
Decrement selected parameter value
Function key 2; hold for 3 seconds for Second Function 2**
Increment selected parameter value
Function key 1; hold for 3 seconds for Second Function 1**
Store selected parameter and index to next parameterAccess parameter list
Quit programming and return to display mode
PROGRAMMING MODE OPERATIONDISPLAY MODE OPERATION
4.0 REVIEWING THE FRONT BUTTONS AND DISPLAY
Index display through main displays as programmed in
RS232 Communications
RS232 is intended to allow two devices to communicate over distances up to
50 feet. Data Terminal Equipment (DTE) transmits data on the Transmitted Data
(TXD) line and receives data on the Received Data (RXD) line. Data Computer
Equipment (DCE) receives data on the TXD line and transmits data on the RXD
line. The PAX emulates a DTE. If the other device connected to the meter also
emulates a DTE, the TXD and RXD lines must be interchanged for
communications to take place. This is known as a null modem connection. Most
printers emulate a DCE device while most computers emulate a DTE device.
Some devices cannot accept more than two or three characters in succession
without a pause in between. In these cases, the meter employs a busy function.
As the meter begins to transmit data, the RXD line (RS232) is monitored to
determine if the receiving device is “busy”. The receiving device asserts that it
is busy by setting the RXD line to a space condition (logic 0). The meter then
suspends transmission until the RXD line is released by the receiving device.
RS485 Communications
The RS485 communication standard allows the connection of up to 32
devices on a single pair of wires, distances up to 4,000 ft. and data rates as high
as 10M baud (the PAX is limited to 19.2k baud). The same pair of wires is used
to both transmit and receive data. RS485 is therefore always half-duplex, that is,
data cannot be received and transmitted simultaneously.
12
12
B(-)
33K
33K
33K
33K
+5V
+5V
Transmit
Transmit
Enable
Enable
PAX METER
PAX METER
RECEIVING DEVICE
RECEIVING DEVICE
A
(+)
(+)
COMM.
COMM. *
NC
NC
*
OPTIONAL
OPTIONAL
13
13
14
14
15
15
Terminal Block Connection Figure
Terminal Block Connection Figure
3.6 SERIAL COMMUNICATION WIRING
Extended Comms Connection Figure
Extended Comms Connection Figure
3.5 ANALOG OUTPUT WIRING
ANALOG OPTION CARD FIELD TERMINALS

E
4491-717-767-6511
OVERVIEW
PROGRAMMING MENU
5.0 PROGRAMMING THE METER
DISPLAY MODE
The meter normally operates in the Display Mode. In this mode, the meter
displays can be viewed consecutively by pressing the DSP key. The
annunciators to the left of the display indicate which display is currently shown;
A, B, or C. Each of these displays are programmable and can be locked from
view through programming. (See Module 3.)
PROGRAMMING MODE
Two programming modes are available.
Full Programming Mode permits all parameters to be viewed and modified.
Upon entering this mode, the front panel keys change to Programming Mode
operations. This mode should not be entered while a process is running, since
the meter functions and User Input response may not operate properly while
in Full Programming Mode.
Quick Programming Mode permits only certain parameters to be viewed
and/or modified. When viewing parameters (SP1, etc), the front panel keys
change to Programming Mode operations, and all meter functions continue
to operate properly. Quick Programming Mode is configured in Module 3.
The Display Intensity Level “” parameter is available in the Quick
Programming Mode only when the security code is non-zero. For a
description, see Module 9—Factory Service Operations. Throughout this
document, Programming Mode (without Quick in front) always refers to
“Full” Programming Mode.
PROGRAMMING TIPS
The Programming Menu is organized into ten modules (see above). These
modules group together parameters that are related in function. It is
recommended to begin programming with Module 1 and proceed through each
module in sequence. Note that Modules 6 through 8 are only accessible when
the appropriate plug-in option card is installed. If lost or confused while
programming, press the DSP key to exit programming mode and start over.
When programming is complete, it is recommended to record the meter settings
on the Parameter Value Chart and lock-out parameter programming with a User
Input or lock-out code. (See Modules 2 and 3 for lock-out details.)
FACTORY SETTINGS
Factory Settings may be completely restored in Module 9. This is a good
starting point if encountering programming problems. Throughout the module
description sections which follow, the factory setting for each parameter is
shown below the parameter display. In addition, all factory settings are listed on
the Parameter Value Chart following the programming section.
ALTERNATING SELECTION DISPLAY
In the module description sections which follow, the dual display with
arrows appears for each programming parameter. This is used to illustrate the
display alternating between the parameter (top display) and the parameter’s
Factory Setting (bottom display). In most cases, selections or value ranges for
the parameter will be listed on the right.
Indicates Program Mode Alternating Display
Parameter
Selection/Value
ª
«
STEP BY STEP PROGRAMMING INSTRUCTIONS:
PROGRAMMING MODE ENTRY (PAR KEY)
The Programming Mode is entered by pressing the PAR key. If this mode is
not accessible, then meter programming is locked by either a security code or a
hardware lock. (See Modules 2 and 3 for programming lock-out details.)
MODULE ENTRY (ARROW & PAR KEYS)
Upon entering the Programming Mode, the display alternates between
and the present module (initially ). The arrow keys (F1Sand F2T) are used
to select the desired module, which is then entered by pressing the PAR key.
PARAMETER (MODULE) MENU (PAR KEY)
Each module has a separate parameter menu. These menus are shown at the
start of each module description section which follows. The PAR key is pressed
to advance to a particular parameter to be changed, without changing the
programming of preceding parameters. After completing a module, the display
will return to . From this point, programming may continue by selecting
and entering additional modules. (See MODULE ENTRY above.)
PARAMETER SELECTION ENTRY (ARROW & PAR KEYS)
For each parameter, the display alternates between the parameter and the
present selection or value for that parameter. For parameters which have a list of
selections, the arrow keys (F1Sand F2T) are used to sequence through the list
until the desired selection is displayed. Pressing the PAR key stores and activates
the displayed selection, and also advances the meter to the next parameter.
NUMERICAL VALUE ENTRY (ARROW, RST & PAR KEYS)
For parameters which require a numerical value entry, the arrow keys can be
used to increment or decrement the display to the desired value. When an arrow
key is pressed and held, the display automatically scrolls up or scrolls down.
The longer the key is held, the faster the display scrolls.
The RST key can be used in combination with the arrow keys to enter large
numerical values. When the RST key is pressed along with an arrow key, the
display scrolls by 1000’s. Pressing the PAR key stores and activates the
displayed value, and also advances the meter to the next parameter.
PROGRAMMING MODE EXIT (DSP KEY or PAR KEY at )
The Programming Mode is exited by pressing the DSP key (from anywhere
in the Programming Mode) or the PAR key (with displayed). This will
commit any stored parameter changes to memory and return the meter to the
Display Mode. If a parameter was just changed, the PAR key should be pressed
to store the change before pressing the DSP key. (If power loss occurs before
returning to the Display Mode, verify recent parameter changes.)

E
450 www.redlion.net
5.1 MODULE 1 - SIGNAL INPUT PARAMETERS
ª
«
ADC CONVERSION RATE
Select the ADC conversion rate (conversions per second). The selection does
not affect the display update rate, however it does affect setpoint and analog
output response time. The default factory setting of 19.8 is recommended for
most applications. Selecting a fast update rate may cause the display to appear
very unstable.
INPUT A PARAMETER MENU
INPUT B PARAMETER MENU
ª
«
INPUT RANGE
Select the input range that corresponds to the external signal. Before
applying signal configure input jumper to match setting desired.
20.000 mA
10.000 V
RANGE RESOLUTIONSELECTION
ª
«
DISPLAY DECIMAL POINT
Select the decimal point location for the Input display. (The TOT display
decimal point is a separate parameter.) This selection also affects ,
and parameters and setpoint values.
ª
«
DISPLAY ROUNDING*
Rounding selections other than one, cause the Input Display to ‘round’ to the
nearest rounding increment selected (ie. rounding of ‘5’ causes 121 to round to
120 and 124 to round to 125). Rounding starts at the least significant digit of
the Input Display. Remaining parameter entries (scaling point values, setpoint
values, etc.) are not automatically adjusted to this display rounding selection.
ª
«
FILTER SETTING
The input filter setting is a time constant expressed in tenths of a second. The
filter settles to 99% of the final display value within approximately 3 time
constants. This is an Adaptive Digital Filter which is designed to steady the
Input Display reading. A value of ‘0’ disables filtering.
to seconds
ª
«
FILTER BAND*
The digital filter will adapt to variations in the input signal. When the
variation exceeds the input filter band value, the digital filter disengages. When
the variation becomes less than the band value, the filter engages again. This
allows for a stable readout, but permits the display to settle rapidly after a large
process change. The value of the band is in display units, independent of the
Display Decimal Point position. A band setting of ‘0’ keeps the digital filter
permanently engaged.
to display units
ª
«
SCALING POINTS
Linear - Scaling Points (2)
For linear processes, only 2 scaling points are necessary. It is recommended
that the 2 scaling points be at opposite ends of the input signal being applied.
The points do not have to be the signal limits. Display scaling will be linear
between and continue past the entered points up to the limits of the Input Signal
Jumper position. Each scaling point has a coordinate-pair of Input Value ()
and an associated desired Display Value ().
Square Root Extraction Input Range - Scaling Points (2)
The PAXDP can apply the square root function directly to the sensor signal
by selecting the Square Root Extraction Input Range ( or ). When
configured for Square Root Extraction, piecewise multipoint linearization is not
required and only the first 2 scaling points are used. For proper operation the
Display 1 ( ) value must be zero.
Nonlinear - Scaling Points (Greater than 2)
For non-linear processes, up to 16 scaling points may be used to provide a
piece-wise linear approximation. (The greater the number of scaling points
used, the greater the conformity accuracy.) The Input Display will be linear
between scaling points that are sequential in program order. Each scaling point
has a coordinate-pair of Input Value () and an associated desired Display
Value (). Data from tables or equations, or empirical data could be used to
derive the required number of segments and data values for the coordinate pairs.
In the Crimson 2 (SFCRM2) software, several linearization equations are
available. See the Accessories section for more information.
to
* The decimal point position is dependent on the selection made in the
“Display Decimal Point” parameter.
ª
«
SCALING STYLE
If Input Values and corresponding Display Values are known, the Key-in
() scaling style can be used. This allows scaling without the presence or
changing of the input signal. If Input Values have to be derived from the actual
input signal source or simulator, the Apply () scaling style must be used.
apply signal
APLY
key-in data
KEY
±20.000 mA - Square Root Extraction
±10.000 V - Square Root Extraction

E
4511-717-767-6511
ª
«
DISPLAY VALUE FOR SCALING POINT 2*
to
General Notes on Scaling
1. Input Values for scaling points should be confined to the limits of the Input
Signal, ie. 4-20 mA or 0-10 VDC.
2. The same Input Value should not correspond to more than one Display Value.
(Example: 20 mA can not equal 0 and 10.)
This is referred to as readout jumps (vertical scaled segments).
3. The same Display Value can correspond to more than one Input Value.
(Example: 0 mA and 20 mA can equal 10.)
This is referred to as readout dead zones (horizontal scaled segments).
4. The maximum scaled Display Value spread between range maximum and
minimum is limited to 65,535. For example using +20 mA range the
maximum +20 mA can be scaled to is 32,767 with 0 mA being 0 and Display
Rounding of 1. (Decimal points are ignored.) The other half of 65,535 is for
the lower half of the range 0 to -20 mA even if it is not used. With Display
Rounding of 2, +20 mA can be scaled for 65,535 (32,767 x 2) but with even
Input Display values shown.
5. For input levels beyond the first programmed Input Value, the meter extends
the Display Value by calculating the slope from the first two coordinate pairs
( / & / ). If = 4 mA and = 0, then 0 mA
would be some negative Display Value. This could be prevented by making
= 0 mA / = 0, = 4 mA / = 0, with = 20 mA /
= the desired high Display Value. The calculations stop at the limits of
the Input Range Jumper position.
6. For input levels beyond the last programmed Input Value, the meter extends
the Display Value by calculating the slope from the last two sequential
coordinate pairs. If three coordinate pair scaling points were entered, then the
Display Value calculation would be between / & / .
The calculations stop at the limits of the Signal Input.
Enter the second coordinating Display Value by using the arrow keys. This is
the same for and scaling styles. (Follow the same procedure if using
more than 2 scaling points.)
5.2 MODULE 2 - USER INPUT AND FRONT PANEL FUNCTION KEY
PARAMETERS ()
PARAMETER MENU
The two user inputs are individually programmable to perform specific meter
control functions. While in the Display Mode or Program Mode, the function is
executed the instant the user input transitions to the active state.
The front panel function keys are also individually programmable to perform
specific meter control functions. While in the Display Mode or when viewing
meter values in Quick Programming mode, the primary function is executed the
instant the key is pressed. Holding the function key for three seconds executes
a secondary function. It is possible to program a secondary function without a
primary function.
In most cases, if more than one user input and/or function key is programmed
for the same function, the maintained (level trigger) actions will be performed
while at least one of those user inputs or function keys are activated. The
momentary (edge trigger) actions will be performed every time any of those
user inputs or function keys transition to the active state.
Note: In the following explanations, not all selections are available for both
user inputs and front panel function keys. Alternating displays are shown
with each selection. Those selections showing both displays are available for
both. If a display is not shown, it is not available for that selection.
will represent both user inputs. will represent all five function keys.
ª
«
ª
«
NO FUNCTION
No function is performed if activated. This is the factory setting for all user
inputs and function keys. No function can be selected without affecting basic
start-up.
ª
«
PROGRAMMING MODE LOCK-OUT
Programming Mode is locked-out, as long as activated
(maintained action). A security code can be configured to
allow programming access during lock-out.
ª
«
INPUT VALUE FOR SCALING POINT 1
For Key-in (), enter the known first Input Value by using the arrow keys.
(The Input Range selection sets up the decimal location for the Input Value.)
For Apply (), apply the input signal to the meter, adjust the signal source
externally until the desired Input Value appears. In either method, press the
PAR key to enter the value being displayed. In the style, the RST key can
be pressed to advance the display past the value or other input value
without storing it. This is useful for application scaling of the second scaling
point (i.e. when the tank is full), or some other point in multipoint applications.
to
ª
«
DISPLAY VALUE FOR SCALING POINT 1*
to
Enter the first coordinating Display Value by using the arrow keys. This is
the same for and scaling styles. The decimal point follows the
selection. For Square Root Extraction Input Range, the Display 1 value must
be zero.
ª
«
INPUT VALUE FOR SCALING POINT 2
to
For Key-in (), enter the known second Input Value by using the arrow
keys. For Apply (), adjust the signal source externally until the next
desired Input Value appears. (Follow the same procedure if using more than 2
scaling points.)
* The decimal point position is dependent on the selection made in the
“Display Decimal Point” parameter.

E
452 www.redlion.net
INPUT A ZERO (TARE) DISPLAY
ª
«
ª
«
The Zero (Tare) Display provides a way to zero the Input A value at various
input levels, causing future Display readings to be offset. This function is useful
in weighing applications where the container or material on the scale should not
be included in the next measurement value. When activated (momentary
action), flashes and the Input A value is set to zero. At the same time, the
Input A value (that was on the display before the Zero Display) is subtracted
from the Input A Display Offset Value and is automatically stored as the new
Display Offset Value (). If another Zero (tare) Display is performed, the
display will again change to zero and the Input A reading will shift accordingly.
ª
«
ª
«
INPUT A RELATIVE/ABSOLUTE DISPLAY
This function will switch the Input A Display between Relative and Absolute.
The Relative is a net value that includes the Display Offset Value. The Input A
Display will normally show the Relative unless switched by this function. The
Absolute is a gross value (based on Module 1 DSP and INP entries) without
the Display Offset Value. The Absolute display is selected as long as the user
input is activated (maintained action) or at the transition of the function key
(momentary action). When the user input is released, or the function key is
pressed again, the input A display switches back to Relative display.
(absolute) or (relative) is momentarily displayed at transition to indicate
which display is active.
INPUT B ZERO (TARE) DISPLAY
ª
«
ª
«
The Zero (Tare) Display provides a way to zero the Input B value at various
input levels, causing future Display readings to be offset. This function is useful
in weighing applications where the container or material on the scale should not
be included in the next measurement value. When activated (momentary
action), flashes and the Input B value is set to zero. At the same time, the
Input B value (that was on the display before the Zero Display) is subtracted
from the Input B Display Offset Value and is automatically stored as the new
Display Offset Value (). If another Zero (tare) Display is performed, the
display will again change to zero and the Input B reading will shift accordingly.
ª
«
ª
«
INPUT B RELATIVE/ABSOLUTE DISPLAY
This function will switch the Input B Display between Relative and
Absolute. The Relative is a net value that includes the Display Offset Value. The
Input B Display will normally show the Relative unless switched by this
function. The Absolute is a gross value (based on Module 1 DSP and INP
entries) without the Display Offset Value. The Absolute display is selected as
long as the user input is activated (maintained action) or at the transition of the
function key (momentary action). When the user input is released, or the
function key is pressed again, the input B display switches back to Relative
display. (absolute) or (relative) is momentarily displayed at
transition to indicate which display is active.
ª
«
HOLD DISPLAY
The shown display is held but all other meter functions
continue as long as activated (maintained action).
ª
«
HOLD ALL FUNCTIONS
The meter disables processing the input, holds all display
contents, and locks the state of all outputs as long as activated
(maintained action). The serial port continues data transfer.
ª
«
SYNCHRONIZE METER READING
The meter suspends all functions as long as activated
(maintained action). When the user input is released, the
meter synchronizes the restart of the A/D’s with other
processes or timing events.
ª
«
ª
«
STORE BATCH READING IN TOTALIZER
The assigned value is one time added (batched) to the Totalizer at transition
to activate (momentary action). The Totalizer retains a running sum of each
batch operation until the Totalizer is reset. When this function is selected, the
normal operation of the Totalizer is overridden.
ª
«
ª
«
RESET TOTALIZER
When activated (momentary action), flashes and the Totalizer resets to
zero. The Totalizer then continues to operate as it is configured. This selection
functions independent of the selected display.
ª
«
RESET AND ENABLE TOTALIZER
When activated (momentary action), flashes and
the Totalizer resets to zero. The Totalizer continues to
operate while active (maintained action). When the user
input is released, the Totalizer stops and holds its value. This
selection functions independent of the selected display.
ª
«
ENABLE TOTALIZER
The Totalizer continues to operate as long as activated
(maintained action). When the user input is released, the
Totalizer stops and holds its value. This selection functions
independent of the selected display.
ª
«
RESET MAXIMUM
When activated (momentary action), flashes and the Maximum resets
to the present assigned value. The Maximum function then continues from that
value. This selection functions independent of the selected display.
Input assignment for the totalizer is programmed in Module 5, Totalizer
(Integrator) Parameters. Only the assigned input or calculation will be active for
the following Totalizer User Functions.
ª
«

E
4531-717-767-6511
RESET MINIMUM
ª
«
When activated (momentary action), flashes and the Minimum reading
is set to the present assigned value. The Minimum function then continues from
that value. This selection functions independent of the selected display.
ª
«
ª
«
ª
«
RESET MAXIMUM AND MINIMUM
When activated (momentary action), flashes and the Maximum and
Minimum readings are set to the present assigned values. The Maximum and
Minimum function then continues from that value. This selection functions
independent of the selected display.
ª
«
ª
«
CHANGE DISPLAY INTENSITY LEVEL
When activated (momentary action), the display intensity changes to the next
intensity level (of 4). The four levels correspond to Display Intensity Level (
) settings of 0, 3, 8, and 15.
Note: Following display functions are only available on User Input.
ª
«
ADVANCE DISPLAY
When activated (momentary action), the display advances to the next display
that is not locked out from the Display Mode.
ª
«
SELECT DISPLAY A
When activated (momentary action), the display advances to Display A,
if enabled.
ª
«
SELECT DISPLAY B
When activated (momentary action), the display advances to Display B,
if enabled.
ª
«
SELECT DISPLAY C
When activated (momentary action), the display advances to Display C,
if enabled.
ª
«
SELECT DISPLAY _
When activated (momentary action), the display advances to the Display _
(no annunciator), if enabled.
ª
«
ª
«
SELECT SETPOINT LIST
Two lists of values are available for , , , . The two lists are
named and . If a user input is used to select the list then is
selected when the user input is not active and and is selected when the
user input is active (maintained action). If a front panel key is used to select the
list then the list will toggle for each key press (momentary action). The display
will only indicate which list is active when the list is changed.
To program the values for and , first complete the programming
of all the parameters. Exit programming and switch to the other list. Re-enter
programming and enter the values for , , , . If any other
parameters are changed then the other list values must be reprogrammed.
SETPOINT SELECTIONS
- Select main or alternate setpoints
- Reset Setpoint 1 (Alarm 1)
- Reset Setpoint 2 (Alarm 2)
- Reset Setpoint 3 (Alarm 3)
- Reset Setpoint 4 (Alarm 4)
- Reset Setpoint 3 & 4 (Alarm 3 & 4)
- Reset Setpoint 2, 3 & 4 (Alarm 2, 3 & 4)
- Reset Setpoint All (Alarm All)
The following selections are functional only with the Setpoint plug-in card
installed. Refer to the Setpoint Card Bulletin shipped with the Setpoint plug-in
card for an explanation of their operation.
⎧
⎨
⎩
Setpoint
Card
Only
ª
«
ª
«
PRINT REQUEST
The meter issues a block print through the serial port when activated, and the
serial type is set to . The data transmitted during a print request and the serial
type is programmed in Module 7. If the user input is still active after the
transmission is complete (about 100 msec), an additional transmission occurs.
As long as the user input is held active, continuous transmissions occur.

E
454 www.redlion.net
ª
«
PROGRAM MODE SECURITY CODE*
By entering any non-zero value, the prompt will appear when trying
to access the Program Mode. Access will only be allowed after entering a
matching security code or universal code of . With this lock-out, a user input
would not have to be configured for Program Lock-out. However, this lock-out
is overridden by an inactive user input configured for Program Lock-out.
ª
«
ª
«
ª
«
ª
«
SP-1 SP-2 SP-3 SP-4 SETPOINT ACCESS*
The setpoint displays can be programmed for , or (see the
following table). Accessible only with the Setpoint plug-in card installed.
ª
«
ª
«
ª
«
5.3 MODULE 3 - DISPLAY ASSIGNMENT AND
PROGRAM LOCK-OUT PARAMETERS ()
PARAMETER MENU
* Factory Setting can be used without affecting basic start-up.
to
Module 3 is the programming for the Display, Display assignments, Display
lock-out and “Full” and “Quick” Program lock-out.
When in the main Display Mode, the available displays (A,B,C,_) can be
read consecutively by repeatedly pressing the DSP key. An annunciator
indicates the display being shown (_ = No annunciator). A meter display value
can be programmed to one of the displays, to the quick programming mode or
be locked from being visible. It is recommended that the meter display value be
set to when it is not being used in the application.
“Full” Programming Mode permits all parameters to be viewed and
modified. This Programming Mode can be locked with a security code and/or
user input. When locked and the PAR key is pressed, the meter enters a Quick
Programming Mode. In this mode, the setpoint values can still be read and/or
changed per the selections below. The display Intensity Level ()
parameter also appears whenever Quick Programming Mode is enabled and the
security code greater than zero.
Immediate access.“Full” ProgrammingNot Active
0
No accessQuick ProgrammingActive
0
Immediate access.“Full” ProgrammingNot Active
>0
After Quick Programming with correct code # at prompt.Quick Programming w/Display IntensityActive
>0
After Quick Programming with correct code # at prompt.Quick Programming w/Display Intensity————
not
>0
Immediate access.“Full” Programming————
not
0
“FULL” PROGRAMMING MODE ACCESS
WHEN PAR KEY IS
PRESSED
USER INPUT
STATE
USER INPUT
CONFIGURED
SECURITY
CODE
PROGRAMMING MODE ACCESS
Throughout this document, Programming Mode (without Quick in front) always refers to “Full” Programming (all meter parameters are accessible).
SELECTION DESCRIPTION
ª
«
ª
«
ª
«
DISPLAY ASSIGNMENT
Not visible in Quick Programming Mode Only
Visible in Quick Programming Mode Only
There are six meter values that can be individually programmed for one of
the main displays (A,B,C or _), or programmed to be viewable in Quick
Programming mode (rEd), or programmed to be locked out from display (LOC)
(see the following table). If two or more values are assigned to the same display
the last value assigned will be the one that is displayed.
LOC
rEd
Not visible in Display Mode or Quick Programming Mode
Visible in Quick Programming Mode only
Assign to Display _ (No annunciator)
dSP-A Assign to Display A
dSP-b Assign to Display B
dSP-C Assign to Display C
Visible and changeable in Quick Programming Mode Only

E
4551-717-767-6511
ª
«
MAX CAPTURE DELAY TIME
When the Input Display is above the present MAX value for the entered
delay time, the meter will capture that display value as the new MAX reading.
A delay time helps to avoid false captures of sudden short spikes.
ª
«
MIN CAPTURE DELAY TIME
When the Input Display is below the present MIN value for the entered delay
time, the meter will capture that display value as the new MIN reading. A delay
time helps to avoid false captures of sudden short spikes.
ª
«
UNITS LABEL BACKLIGHT
The Units Label Kit Accessory contains a sheet of custom unit overlays
which can be installed in to the meter’s bezel display assembly. The backlight
for these custom units is activated by this parameter.
ª
«
INPUT A OFFSET VALUE*
Unless a Zero Display was performed or an offset from Module 1 scaling is
desired for Input A, this parameter can be skipped. The Display Offset Value is
the difference between the Absolute (gross) Display value and the Relative (net)
Display value for the same input level. The meter will automatically update this
Display Offset Value after each Zero Display. The Display Offset Value can be
directly keyed-in to intentionally add or remove display offset. See Relative /
Absolute Display and Zero Display explanations in Module 2. ª
«
DISPLAY UPDATE RATE
This parameter determines the rate of display update.
5.4 MODULE 4 - SECONDARY FUNCTION PARAMETERS ()
PARAMETER MENU
to sec.
to sec.
to
updates/sec.
ª
«
INPUT B OFFSET VALUE*
Unless a Zero Display was performed or an offset from Module 1 scaling is
desired for Input B, this parameter can be skipped. The Display Offset Value is
the difference between the Absolute (gross) Display value and the Relative (net)
Display value for the same input level. The meter will automatically update this
Display Offset Value after each Zero Display. The Display Offset Value can be
directly keyed-in to intentionally add or remove display offset. See Relative /
Absolute Display and Zero Display explanations in Module 2.
to
ª
«
MAX CAPTURE ASSIGNMENT
Select the desired parameter that will be assigned to the Max Capture.
ª
«
MIN CAPTURE ASSIGNMENT
Select the desired parameter that will be assigned to the Min Capture.
ª
«
CALCULATION DECIMAL POINT
This parameter determines the decimal point location for the Calculation
Display. For the $"C, $"C, and $"C calculation functions, Input A
“Display Decimal Point”, Input B “Display Decimal Point” and “Calculation
Decimal Point” must all be in the same position.
ª
«
DBC
CALCULATION FUNCTION
This parameter determines the math calculation that will be performed on Input
A and Input B and shown on the calculation display. The above formulas
represent the available calculations; = Input A relative value, = Input B
relative value, and = Calculation Constant Value (). For the average
between A and B inputs, scale the display (Input A & Input B E41 x) values in
half and then use C Ab.
Note:= add, -= subtract, = division, D("C)is displayed in the PAX
as "C and the function performs with A divided b then 1 is subtracted and
the result is multiply by c.
D"C D"C D"C BCD D"C
* The decimal point position is dependent on the selection made in the
“Display Decimal Point” parameter.
D("C)

E
456 www.redlion.net
to
ª
«
CALCULATION ROUNDING*
ª
«
CALCULATION CONSTANT VALUE
The constant value is used in the Calculation Function formulas to provide
offsetting or scaling capabilities. For the $"C, $"C, and $"C
calculation functions, the Constant decimal point matches that Calculation
Decimal point position. For these functions, the “Constant Value” must be
lowered to a value of 0 for no offset.
For the BCD, D"C, and D("C)calculation functions, there is no
“Constant Value” decimal point shown. However, when Input A “Display
Decimal Point”, Input B “Display Decimal Point” and “Calculation Decimal
Point” are in the same position, then the “Constant Value” decimal point will be
assumed to be at the same location as the “Calculation Decimal Point”. For the
Calculation Display to have the same resolution as Inputs A & B, the “Constant
Value” must be a value of 1 with trailing 0's for each assumed decimal point
location. Example: With Input A, Input B and the Calculation decimal points
entered as 0.00, then the “Constant Value” would be entered as 100 for no gain.
Rounding selections other than one, cause the Calculation Display to ‘round’ to
the nearest rounding increment selected (ie. rounding of ‘0.005’ causes 0.121 to
round to 0.120 and 0.124 to round to 125). Rounding starts at the least significant
digit of the Calculation Display. Remaining parameter entries (scaling point
values, setpoint values, etc.) are not automatically adjusted to this display rounding
selection. The displayed decimal point reflects that programmed in .
ª
«
CALCULATION FILTER SETTING
to
The calculation filter setting is a time constant expressed in tenths of a
second. The filter settles to 99% of the final display value within approximately
3 time constants. This is an Adaptive Digital Filter which is designed to steady
the Calculation Display reading. A value of ‘0’ disables filtering.
ª
«
CALCULATION FILTER BAND*
The digital filter will adapt to variations in the calculation filter. When the
variation exceeds the calculation filter band value, the digital filter disengages.
When the variation becomes less than the band value, the filter engages again.
This allows for a stable readout, but permits the display to settle rapidly after a
large process change. The value of the band is in display units, independent of
the Display Decimal Point position. A band setting of ‘0’ keeps the digital filter
permanently engaged.
to display units
5.5 MODULE 5 - TOTALIZER (INTEGRATOR) PARAMETERS ()
PARAMETER MENU
ª
«
TOTALIZER DECIMAL POINT*
For most applications, this should match the decimal point position of the
meter value selected in the totalizer assignment. If a different location is
desired, refer to Totalizer Scale Factor.
0
ª
«
TOTALIZER TIME BASE
This is the time base used in Totalizer accumulations. If the Totalizer is being
accumulated through a user input programmed for Batch, then this parameter
does not apply.
- seconds (÷ 1)
- days (÷ 86400) - minutes (÷ 60)
The totalizer accumulates (integrates) the relative Input value using one of
two modes. The first is using a time base. This can be used to provide an
indication of total flow, usage or consumption over time. The second is through
a user input or function key programmed for Batch (one time add on demand).
This can be used for weighing applications where accumulation is based on a
completed event. If the Totalizer is not needed, its display can be locked-out and
this module can be skipped during programming.
ª
«
TOTALIZER ASSIGNMENT
This parameter determines which value is to be totalized.
A-rEL b-rEL CALC
ª
«
TOTALIZER SCALE FACTOR*
For most applications, the Totalizer reflects the same decimal point location
and engineering units as the assigned Input Display. In these cases, the Totalizer
Scale Factor is 1.000. The Totalizer Scale Factor can be used to scale the
Totalizer to a different value than the Input Display. Common possibilities are:
1. Changing decimal point location (example tenths to whole)
2. Average over a controlled time frame.
Details on calculating the scale factor are shown later.
If the Totalizer is being accumulated through a user input programmed for
Batch, then this parameter does not apply.
to
* The decimal point position is dependent on the selection made in the
“Calculation Decimal Point” parameter.
- hours (÷ 3600)

E
4571-717-767-6511
ª
«
TOTALIZER LOW CUT VALUE*
to
A low cut value disables Totalizer when the Input Display value falls below
the value programmed.
ª
«
TOTALIZER POWER UP RESET
Reset totalizer
Do not reset totalizer
yEs
NO
The Totalizer can be reset to zero on each meter power-up by setting this
parameter to reset.
TOTALIZER SCALE FACTOR CALCULATION EXAMPLES
1. When changing the Totalizer Decimal Point () location from the
Input Display Decimal Point (), the required Totalizer Scale Factor is
multiplied by a power of ten.
Example: Input () = 0.0 Input () = 0.00
(x = Totalizer display is round by tens or hundreds)
2. To obtain an average reading within a controlled time frame, the selected
Totalizer Time Base is divided by the given time period expressed in the same
timing units.
Example: Average flow rate per hour in a 4 hour period, the scale factor
would be 0.250. To achieve a controlled time frame, connect an external timer
to a user input programmed for . The timer will control the start (reset)
and the stopping (hold) of the totalizer.
.001x10
.010
.10.0
10.00
100.000
Scale
Factor
Totalizer
Scale
Factor
0.00 10
0.0 1
0.1
x10 .01
x100 .001
Totalizer
* The decimal point position is dependent on the selection made in the
“Totalizer Decimal Point” parameter.
TOTALIZER HIGH ORDER DISPLAY
When the total exceeds 5 digits, the front panel annunciator flashes (if
assigned to A, B, or C display). In this case, the meter continues to totalize up
to a 9 digit value. The high order 4 digits and the low order 5 digits of the total
are displayed alternately. The letter “” denotes the high order display.
TOTALIZER BATCHING
The Totalizer Time Base and scale factor are overridden when a user input or
function key is programmed for store batch (). In this mode, when the user
input or function key is activated, the Input Display reading is one time added
to the Totalizer (batch). The Totalizer retains a running sum of each batch
operation until the Totalizer is reset. This is useful in weighing operations, when
the value to be added is not based on time but after a filling event.
TOTALIZER USING TIME BASE
Totalizer accumulates as defined by:
Input Display x Totalizer Scale Factor
Totalizer Time Base
Where:
Input Display - the present input reading
Totalizer Scale Factor - 0.001 to 65.000
Totalizer Time Base - (the division factor of )
Example: The input reading is at a constant rate of 10.0 gallons per minute. The
Totalizer is used to determine how many gallons in tenths has flowed.
Because the Input Display and Totalizer are both in tenths of gallons, the
Totalizer Scale Factor is 1. With gallons per minute, the Totalizer Time Base
is minutes (60). By placing these values in the equation, the Totalizer will
accumulate every second as follows:
10.0 x 1.000 = 0.1667 gallons accumulate each second
60
This results in:
10.0 gallons accumulate each minute
600.0 gallons accumulate each hour

E
458 www.redlion.net
5.6 MODULE 6 - SETPOINT (ALARM) PARAMETERS ()
PARAMETER MENU
FLASH
rEv
YES
LAtC2
rEv
to sec
to sec
1 to 65000
-19999 to 99999
nor
OFF
- SETPOINT ANNUNCIATORS
NO
- STANDBY OPERATION
LAtC1
AUto
- RESET ACTION
nor
- OUTPUT LOGIC
- OFF TIME DELAY
- ON TIME DELAY
- SETPOINT HYSTERESIS
- SETPOINT VALUE
Modules 6, 7, and 8 are accessible only with the appropriate plug-in cards installed. A quick overview of Module 6 is listed
below. Refer to the corresponding plug-in card bulletin for a more detailed explanation of each parameter selection.
Repeat programming for each setpoint.
Enter the action for the selected setpoint (alarm output).
See the Setpoint Alarm Figures in the Setpoint Card Bulletin for a visual
detail of each action. The Inside Band action is shown here as it only applies to
the PAXDP.
The parameters listed below are different from those listed in the Setpoint
Card Literature. Use the separate Setpoint Option Card Literature for all other
setpoint parameters.
SETPOINT ASSIGNMENT
ª
«
NONE A-rEL A-Abs b-rEL
b-AbS CALC tot
Selects the meter value that is used to trigger the Setpoint Alarm. The S&-
settings cause the setpoint to trigger off of the relative (net) input value. The
relative input value is the absolute input value that includes the Display Offset
Value. The "C4 settings cause the setpoint to trigger off of the absolute (gross)
input value. The absolute input value is based on Module 1 ET1 and */1 entries.
SETPOINT ACTION
ª
«
NO Ab-HI Ab-LO AU-HI
AU-LO dE-HI *dE-LO *bANd *
bNdIn totLo ** tothI **
SP-4SP-2
SP-3SP-1
ª
«
SELECT SETPOINT
Select a setpoint (alarm output) to open the remaining module menu. (The
“” in the following parameters will reflect the chosen setpoint number.) After
the chosen setpoint is programmed, the display will default to . Select
the next setpoint to be programmed and continue the sequence for each setpoint.
Pressing PAR at will exit Module 6.
NO
No Setpoint Action=
Absolute high, with balanced hysteresis=
Absolute low, with balanced hysteresis=
Absolute high, with unbalanced hysteresis=
Absolute low, with unbalanced hysteresis=
Deviation high, with unbalanced hysteresis *=
= Deviation low, with unbalanced hysteresis *
Inside band, with unbalanced hysteresis *
Outside band, with unbalanced hysteresis *
=
=
Lower Totalizer absolute high, unbalance hysteresis **=
Upper Totalizer absolute high, unbalance hysteresis **=
Band Inside Acting (Unbalanced Hys) = bNdIn
Setpoint Alarm Figure
With reverse output logic , the below alarm state is opposite.
*Setpoint 2 or Setpoint 4 deviation and band action setpoints are relative to
the value of setpoint 1 or Setpoint 3 respectively. It is not possible to configure
setpoint 1 or 3 as deviation or band actions. It is possible to use setpoint 1 or 3
for an absolute action, while its value is being used for deviation or band.
** These modes only appear, and are the only modes that appear, when the
setpoint assignment is set to . The lower Totalizer action, ,
allows setpoints to function off of the lower 5 digits of the Totalizer. The upper
Totalizer action, , allows setpoints to function off of the upper 4 digits
of the Totalizer. To obtain absolute low alarms for the Totalizer, program the
or output logic as reverse.

E
4591-717-767-6511
ª
«
BAUD RATE
Set the baud rate to match the other serial communications equipment on the
serial link. Normally, the baud rate is set to the highest value that all the serial
equipment are capable of transmitting and receiving.
ª
«
DATA BIT
Select either 7 or 8 bit data word lengths. Set the word length to match the
other serial communications equipment on the serial link.
ª
«
PARITY BIT
Set the parity bit to match that of the other serial communications equipment
on the serial link. The meter ignores the parity when receiving data and sets the
parity bit for outgoing data. If no parity is selected with 7 bit word length, an
additional stop bit is used to force the frame size to 10 bits.
ª
«
METER UNIT ADDRESS
Enter the serial meter (node) address. The address range is dependent on the
parameter. With a single unit, configured for RLC protocol ( =
), an address is not needed and a value of zero can be used. With multiple
units (RS485 applications), a unique 2 digit address number must be assigned
to each meter.
PARAMETER MENU
to (RLC Protocol)
to (Modbus)
5.7 MODULE 7 - SERIAL COMMUNICATIONS PARAMETERS ()
Module 7 is the programming module for the Serial Communications
Parameters. These parameters are used to match the serial settings of the
PAXDP with those of the host computer or other serial device, such as a
terminal or printer. This programming module can only be accessed if an RS232
or RS485 Serial Communications card is installed.
This section also includes an explanation of the commands and formatting
required for communicating with the PAXDP. In order to establish serial
communications, the user must have host software that can send and receive
ASCII characters or utilizes Modbus protocol. For serial hardware and wiring
details, refer to section 3.6 Serial Communication Wiring.
This section replaces the bulletin shipped with the RS232 and RS485 serial
communications plug-in cards. Discard the separate bulletin when using those
serial plug-in cards with the PAXDP. Also, this section does NOT apply to the
DeviceNet, or Profibus-DP communication cards. For details on the operation
of the Fieldbus cards, refer to the bulletin shipped with each card.
Select the desired communications protocol. Modbus is preferred as it
provides access to all meter values and parameters. Since the Modbus protocol
is included within the PAXDP, the PAX Modbus option card, PAXCDC4,
should not be used. The PAXCDC1 (RS485), or PAXCDC2 (RS232) card
should be used instead.
COMMUNICATIONS TYPE
- RLC Protocol (ASCII)
- Modbus RTU †
- Modbus ASCII
ª
«
ª
«
TRANSMIT DELAY
CRIMSON SOFTWARE
Following a transmit value (‘*’ terminator) or Modbus command, the
PAXDP will wait this minimum amount of time in seconds before issuing a
serial response.
to
When communicating with Crimson 2 software, the PAXDP must be set in
default configuration type of:
Communications Type: MODBUS RTU †
Baud Rate: 38400
Data Bit: 8
ParityBit: no
Meter Unit Address: 247
†The Communication Type factory settings must be changed from the
Modbus RTU for Crimson 2 communications.

E
460 www.redlion.net
SERIAL MODBUS COMMUNICATIONS
Modbus Communications requires that the Serial Communication Type
Parameter () be set to “” or “”.
SUPPORTED FUNCTION CODES
FC03: Read Holding Registers
1. Up to 32 registers can be requested at one time.
2. HEX <8000> is returned for non-used registers.
FC04: Read Input Registers
1. Up to 32 registers can be requested at one time.
2. Block starting point can not exceed register boundaries.
3. HEX <8000> is returned in registers beyond the boundaries.
4. Input registers are a mirror of Holding registers.
FC06: Preset Single Register
1. HEX <8001> is echoed back when attempting to write to a read only
register.
2. If the write value exceeds the register limit (see Register Table), then that
register value changes to its high or low limit. It is also returned in the
response.
FC16: Preset Multiple Registers
1. No response is given with an attempt to write to more than 32 registers at
a time.
2. Block starting point cannot exceed the read and write boundaries (40001-
41280).
3. If a multiple write includes read only registers, then only the write registers
will change.
4. If the write value exceeds the register limit (see Register Table), then that
register value changes to its high or low limit.
FC08: Diagnostics
The following is sent upon FC08 request:
Module Address, 08 (FC code), 04 (byte count), “Total Comms” 2 byte count,
“Total Good Comms” 2 byte count, checksum of the string
“Total Comms” is the total number of messages received that were addressed
to the PAXDP. “Total Good Comms” is the total messages received by the
PAXDP with good address, parity and checksum. Both counters are reset to 0
upon response to FC08 and at power-up.
FC17: Report Slave ID
The following is sent upon FC17 request:
RLC-PAXDP ab<0100h><20h><20h><10h>
16 Guid/Scratch Pad
Max Register Reads (32)
Max Register Writes (32)
Software Version Number
b = Linear Card “0” = None, “1” = Yes
a = SP Card, “0”-No SP, “2” or “4” SP
a = “0”(none), “2”, “4” SP card installed
b = “0”(none) or “1” Linear Card installed),
SUPPORTED EXCEPTION CODES
01: Illegal Function
Issued whenever the requested function is not implemented in the meter.
02: Illegal Data Address
Issued whenever an attempt is made to access a single register that does not
exist (outside the implemented space) or to access a block of registers that falls
completely outside the implemented space.
03: Illegal Data Value
Issued when an attempt is made to read or write more registers than the meter
can handle in one request.
07: Negative Acknowledge
Issued when a write to a register is attempted with an invalid string length.
ª
«
ABBREVIATED PRINTING
Select for full print or Command T transmissions (meter address,
parameter data and mnemonics) or for abbreviated print transmissions
(parameter data only). This will affect all the parameters selected in the print
options. (If the meter address is 00, it will not be sent during a full
transmission.)
ª
«
PRINT OPTIONS
- Enters the sub-menu to select the meter parameters to appear during a
print request. For each parameter in the sub-menu, select for that parameter
information to be sent during a print request or for that parameter
information not to be sent. A print request is sometimes referred to as a block
print because more than one parameter information (meter address, parameter
data and mnemonics) can be sent to a printer or computer as a block.
DESCRIPTION
Setpoint Values
SPNt
Max. & Min.
HILO
Total Value
tot
Calculation
CALC
Input B Value
INP b
Input A Value
INP A
PARAMETER
Parameters below only appear when communications type () parameter is set to .

E
4611-717-767-6511
PAXDP MODBUS REGISTER TABLE
The below limits are shown as Integers or HEX < > values. Read and write functions can be performed in either Integers or Hex as long as the conversion was done
correctly. Negative numbers are represented by two’s complement.
Note 1: The PAXDP should not be powered down while parameters are being changed. Doing so may corrupt the non-volatile memory resulting in checksum errors.
1For Input Registers, replace the 4xxxx with a 3xxxx in the above register address. The 3xxxx are a mirror of the 4xxxx Holding Registers.
2An attempt to exceed a limit will set the register to its high or low limit value.
Bit State: 1= Reset Output; Bit is returned to zero
following reset processing
Bit 3 = SP1, Bit 2 = SP2, Bit 1 = SP3, Bit 0 = SP4
Status of Setpoint Outputs: Bit State: 0=Off, 1=On,
Bit 3 = SP1, Bit 2 = SP2, Bit 1 = SP3, Bit 0 = SP4
Outputs can only be activated/reset with this register
when respective bits in Manual Mode (MMR) register
are set
Bit State: 0=Auto Mode, 1=Manual Mode
Bit 4 = SP1, Bit 3 = SP2, Bit 2 = SP3, Bit 1 = SP4,
Bit 0 = Linear Output
Functional only if Linear Output is in manual mode
(MMR bit 0 = 1). Linear Output Card is written to only
if Linear Out (MMR bit 0) is set
Gross value of present Input A level. This value is
affected by Input Type, Resolution, Scaling, but not
affected by Offset Value
Gross value of present Input B level. This value is
affected by Input Type, Resolution, Scaling, but not
affected by Offset Value
Relative Input Value (standard meter value) is sum of
Input Offset Value and Input Absolute Value
Setpoint List B
Setpoint List A
Setpoint List A
Setpoint List A
Setpoint List A
Relative Input Value (standard meter value) is sum of
Input Offset Value and Input Absolute Value
Input B Relative Value (Lo word)
REGISTER
ADDRESS 1REGISTER NAME LOW LIMIT 2HIGH LIMIT 2FACTORY
SETTING ACCESS COMMENTS
FREQUENTLY USED REGISTERS
40001
40002
Input A Relative Value (Hi word)
Input A Relative Value (Lo word)
N/A N/A N/A Read Only
40003 Input B Relative Value (Hi word)
N/A N/A N/A Read Only
40004
40005
40006
40007
40009
40011
40013
40017
40015
40019
40008
40010
40012
40014
40018
40016
40020
Calculation Value (Hi word)
Calculation Value (Lo word)
Maximum Value (Hi word)
Minimum Value (Hi word)
Total Value (Hi word)
Setpoint 1 Value (Hi word)
Setpoint 3 Value (Hi word)
Setpoint 2 Value (Hi word)
Setpoint 4 Value (Hi word)
Maximum Value (Lo word)
Minimum Value (Lo word)
Total Value (Lo word)
Setpoint 1 Value (Lo word)
Setpoint 3 Value (Lo word)
Setpoint 2 Value (Lo word)
Setpoint 4 Value (Lo word)
N/A
-19999
-19999
-199999000
-19999
-19999
-19999
-19999
N/A
99999
99999
999999000
99999
99999
99999
99999
N/A
N/A
N/A
N/A
100
300
200
400
Read Only
Read/Write
Read/Write
Read/Write
Read/Write
Read/Write
Read/Write
Read/Write
40021
40022
40023
40024
40025
40027
40026
40028
40029
40041
40039
40035
40037
40033
40031
40030
40042
40040
40036
40038
40034
40032
Setpoint Output Register (SOR)
Manual Mode Register (MMR)
Reset Output Register
Analog Output Register (AOR)
Input A Absolute Value (Hi word)
Input B Absolute Value (Hi word)
Input A Absolute Value (Lo word)
Input B Absolute Value (Lo word)
Input A Offset Value (Hi word)
Alternate Setpoint 1 Value (Hi word)
Main Setpoint 4 Value (Hi word)
Main Setpoint 2 Value (Hi word)
Main Setpoint 3 Value (Hi word)
Main Setpoint 1 Value (Hi word)
Input B Offset Value (Hi word)
Input A Offset Value (Lo word)
Alternate Setpoint 1 Value (Lo word)
Main Setpoint 4 Value (Lo word)
Main Setpoint 2 Value (Lo word)
Main Setpoint 3 Value (Lo word)
Main Setpoint 1 Value (Lo word)
Input B Offset Value (Lo word)
0
0
0
0
N/A
N/A
-19999
-19999
-19999
-19999
-19999
-19999
-19999
15
31
15
4095
N/A
N/A
99999
99999
99999
99999
99999
99999
99999
N/A
0
0
0
N/A
N/A
0
100
400
200
300
100
0
Read/Write
See Note
Read/Write
Read/Write
Read/Write
Read Only
Read Only
Read/Write
Read/Write
Read/Write
Read/Write
Read/Write
Read/Write
Read/Write
Calculation Result of Math Function
Process value of present input level. This value is affected
by Input Type, Resolution, Scaling & Offset Value
(Relative Value = Absolute Input Value + Offset Value)
Process value of present input level. This value is affected
by Input Type, Resolution, Scaling & Offset Value
(Relative Value = Absolute Input Value + Offset Value)

E
462 www.redlion.net
1For Input Registers, replace the 4xxxx with a 3xxxx in the above register address. The 3xxxx are a mirror of the 4xxxx Holding Registers.
2An attempt to exceed a limit will set the register to its high or low limit value.
0=Volt, 1=Current, 2=Volt Square Root Extraction,
3= Current Square Root Extraction
0 = Min Intensity, 15 = Max IntensityRead/Write3
See User F1 Key DescriptionRead/Write0190User F2 Key Action40304
See User F1 Key Description
See User Input 1 above
Read/Write
15
0=1, 1=2, 2=5, 3=10, 4=20, 5=50, 6=100Read/Write060Rounding Factor4020440104
0=0, 1=0.0, 2=0.00, 3=0.000, 4=0.0000
02500Program Mode Security Code40321
Read/Write340Decimal Point4020340103
0=5.3, 1=7.5, 2=16.7, 3=19.8, 4=20, 5=30, 6=105 Read/Write
0Display Intensity Level40322
360ADC Conversion Rate (samples/sec)4020240102
Read/Write010
Input Range4020140101
INPUT PARAMETERS
400
300
200
99999
99999
99999
-19999
-19999
-19999
Alternate Setpoint 4 Value (Hi word)
Alternate Setpoint 3 Value (Hi word)
Alternate Setpoint 2 Value (Hi word)
Alternate Setpoint 4 Value (Lo word)
Alternate Setpoint 3 Value (Lo word)
Alternate Setpoint 2 Value (Lo word)
CH BCH A
40047
40045
40043
40048
40046
40044
DISPLAY/QUICK PRO MENU LOCKS
0=Loc, 1=Red, 2=Disp _, 3=Disp A, 4= Disp B, 5=Disp C
Read/Write0190User Reset Key Action40305
See User F1 Key DescriptionRead/Write0190User F1 Second Action40306
See User F1 Key DescriptionRead/Write0190User F2 Second Action40307
SEE MODULE 3 FOR DESCRIPTIONS OF PARAMETERS
Read/Write350Input A Display Lock40311
0=Loc, 1=Red, 2=Disp _, 3=Disp A, 4= Disp B, 5=Disp CRead/Write450Input B Display40312
0=Loc, 1=Red, 2=Disp _, 3=Disp A, 4= Disp B, 5=Disp CRead/Write550Calculation Display40313
0=Loc, 1=Red, 2=Disp _, 3=Disp A, 4= Disp B, 5=Disp CRead/Write050Maximum (Hi) Value40314
0=Loc, 1=Red, 2=Disp _, 3=Disp A, 4= Disp B, 5=Disp CRead/Write050Minimum (Lo) Value40315
0=Loc, 1=Red, 2=Disp _, 3=Disp A, 4= Disp B, 5=Disp CRead/Write050Total Display40316
0 = Lock, 1=Read, 2=EnterRead/Write020SP1 Quick Pro40317
0 = Lock, 1=Read, 2=EnterRead/Write020SP2 Quick Pro40318
0 = Lock, 1=Read, 2=EnterRead/Write020SP3 Quick Pro40319
0 = Lock, 1=Read, 2=EnterRead/Write020SP4 Quick Pro40320
Read/Write0190User F1 Key Action40303
Read/Write0300User Input 2 Action
SEE MODULE 1 FOR DESCRIPTION OF PARAMETERS
Setpoint List B
Setpoint List B
Setpoint List B
40302
Read/Write0300
User Input 1 Action
1=0.1 Second
40301
USER INPUT/FUNCTION KEYS
1=1 display unitRead/Write102500Filter Band
Input 16 Input Value (Lo word)4027040170 1=0.001Read/Write099999-19999
Input 16 Input Value (Hi word)4026940169
SEE MODULE 2 FOR DESCRIPTIONS OF PARAMETERS
4020640106
Read/Write102500Digital Input Filter4020540105
Input 1 Input Value (Lo word)4021040110 1=0.001Read/Write099999-19999
Input 1 Input Value (Hi word)4020940109
Display 1 Input Value (Lo word)4021240112 Read/Write099999-19999
Display 1 Input Value (Hi word)4021140111
Registers 40113-40168, 40213-40268 not shown but
follow ordering as shown for Input 1, Display 1
............thruthru
Input 16 Input Value (Lo word)4027240172
SCALING POINTS PARAMETERS
FREQUENTLY USED REGISTERS (Continued)
COMMENTS
ACCESS
FACTORY
SETTING
HIGH LIMIT 2
LOW LIMIT 2
REGISTER NAME
REGISTER
ADDRESS 1
N/AN/AN/AN/AReserved
4020840108
Number of LInearization Scaling PointsRead/Write2162Number of Scaling Points4020740107
Read/Write099999-19999
Input 16 Input Value (Hi word)4027140171
Read/Write
Read/Write
Read/Write
23 = r-115 = r-HL7 = A-HLd
30 = Print22 = LISt14 = r-Lo6 = d-HLd
29 = r-ALL21 = d-LEV13 = r-HI5 = b-drL
28 = r-23420 = dSP-_12 = E-tot4 = A-drL
27 = r-3419 = dSP-C11 = rtot23 = b-rEL
26 = r-418 = dSP-b10 = rtot12 = A-rEL
25 = r-317 = dSP-A9 = bAt1 = PLOC
24 = r-216 = dISP8 = SYNC0= NO
19 = Print14 = r-39 = r-HL4 = b-drL
18 = r-ALL13 = r-28 = r-Lo3 = A-drL
17 = r-23412 = r-17= r-HI2 = b-rEL
16 = r-3411 = LISt6 = rtot1 = A-rEL
15 = r-410 = d-LEV5 = bAt0 = NO

E
4631-717-767-6511
1For Input Registers, replace the 4xxxx with a 3xxxx in the above register address. The 3xxxx are a mirror of the 4xxxx Holding Registers.
2An attempt to exceed a limit will set the register to its high or low limit value.
Calculation Display Rounding Factor
Calculation Filter Band
A=Input A, B=Input B, C=Calculation Constant
0=1 Rdg/sec, 1=2 Rdgs/sec, 2=5 Rdgs/sec,
3=10 Rdgs/sec, 4=20 Rdgs/sec
1=1 Display Unit
1=1 Display Unit
0=Auto, 1=Latch1, 2=Latch2
0=Auto, 1=Latch1, 2=Latch2
Read/Write
Read/Write
Read/Write
Read/Write
2
2
0
0
65000
65000
2
2
1
1
0
0
0=Max Update Rate, 1=0.1 sec
0=Max Update Rate, 1=0.1 sec
SEE MODULE 6 FOR DESCRIPTION OF PARAMETERS
(APPLIES ONLY IF SP OPTION CARD, PAXCDS, IS INSTALLED)
Hysteresis
Hysteresis
Reset
Reset
40363
40373
40367
40377
1=0.1 Second
1=0.1 Second
0=No, 1 = Yes
0=No, 1 = Yes
0=Second, 1=Minute, 2=Hour, 3=DayRead/Write
0=Off, 1=On
0=0, 1=0.0, 2=0.00, 3=0.000, 4=0.0000
1=0.1 Second
0=1, 1=2, 2=5, 3=10, 4=20, 5=50, 6=100
1=1 display unit
*Value shown here for reference
0=A-Rel, 1=A-Abs, 2=b-Rel, 3=bAbs, 4=Calc
*Value shown here for reference
0=A-Rel, 1=A-Abs, 2=b-Rel, 3=bAbs, 4=Calc
Read/Write
Read/Write
Read/Write
Read/Write
0
0
0
0
32750
32750
1
1
0
0
0
0
On Delay
On Delay
Standby
Standby
40364
40374
40368
40378
1=0.1 Second
1=0.1 Second
0=Off, 1=Normal, 2=Reverse, 3=Flash
0=Off, 1=Normal, 2=Reverse, 3=Flash
Read/Write
Read/Write
Read/Write
Read/Write
0
0
1
1
32750
32750
3
3
0
0
1
0
Off Delay
Off Delay
Lit - Annunciator
Lit - Annunciator
40365
40375
40369
40379
Read/Write
Read/Write
10
10
32750
32750
0
0
Input A Offset Value (Lo word)
Max (Hi) Capture Delay Time
Input B Offset Value (Lo word)
Min (Lo) Capture Delay Time
40030
40332
40032
40334
SETPOINT 1 OUTPUT PARAMETERS
Note: SP Values are located at Registers 40013-40021
SETPOINT 2 OUTPUT PARAMETERS
Read/Write
Read/Write
0
0
6
6
0
0
Assignment
Assignment
40361
40371
0=No, 1=Ab-HI, 2=Ab-Lo, 3=AU-HI, 4=AU-LO,
9=totLo, 10=totHI; Do not use 5-8.
0=No, 1=Ab-HI, 2=Ab-Lo, 3=AU-HI, 4=AU-LO, 5=dE-
HI, 6=dE-LO, 7=bANd, 8=bNdIn, 9=totLo, 10=totHI
0=Normal, 1=Reverse
0=Normal, 1=Reverse
Read/Write
Read/Write
Read/Write
Read/Write
0
0
0
0
10
10
1
1
0
0
0
0
Action
Action
Output Logic
Output Logic
40362
40372
40366
40376
130Total Timebase40353
1=0.001Read/Write1000650000Total Scale Factor40354
Read/Write-1999999999-19999Total Low Cut Value (Hi word)40355
0 = No, 1 = Yes
Read/Write
Read/Write
-19999
0
99999
1
-19999
0
Total Low Cut Value (Lo word)
Total Reset at Power Up
40356
40357
TOTALIZER PARAMETERS
0=A-Rel, 1= b-Rel, 2= CalcRead/Write020Total Assignment40351
0=0, 1= 0.0, 2=0.00, 3=0.000, 4=0.0000Read/Write240Total Decimal Point40352
Read/Write
Read/Write
Read/Write
Read/Write
Read/Write
Read/Write
0
3
10
1000
0
10
1
4
250
99999
6
250
0
0
0
-19999
0
0
Units Annunciator Backlight
Calculation Display Decimal Point
Calculation Constant Value Low
Calculation Display Filter Value
Calculation Constant Value High
40336
40338
40340
40342
40339
40341
40343
Read/Write
Read/Write
0
0
4
5
0
0
Display Update Time
Calculation Function
40335
40337
Read/Write
Read/Write
Read/Write
Read/Write
0
0
0
0
99999
4
99999
4
-19999
0
-19999
0
Input A Offset Value (Hi word)
Max (Hi) Value Assignment
Input B Offset Value (Hi word)
Min (Lo) Value Assignment
40029
40331
40031
40333
SECONDARY PARAMETERS SEE MODULE 4 FOR DESCRIPTIONS OF PARAMETERS
COMMENTSACCESS
FACTORY
SETTING
HIGH LIMIT 2
LOW LIMIT 2
REGISTER NAME
REGISTER
ADDRESS 1
5 = C(A/B-1)
4 = C*A/B3 = A*B/C
2 = C+A-B1 = C-A-B0 = C+A+B
6=Tot5=Calc4=b-Abs
3=b-Rel2=A-Abs1=A-Rel0=None
6=Tot5=Calc4=b-Abs
3=b-Rel2=A-Abs1=A-Rel0=None

E
464 www.redlion.net
REGISTER
ADDRESS 1REGISTER NAME LOW LIMIT 2HIGH LIMIT 2FACTORY
SETTING ACCESS COMMENTS
40406
40396
40386
40412
40402
40392
40382
Transmit Delay
Output Logic
Output Logic
Assignment
Baud Rate
Action
Action
0
0
0
0
0
0
0
250
1
1
8
7
10
10
10
0
0
0
7
0
0
Read/Write
Read/Write
Read/Write
Read/Write
Read/Write
Read/Write
1=0.001 Second
0=Normal, 1=Reverse
0=Normal, 1=Reverse
0=NONE, 1=A-REL, 2=A-AbS, 3=b-rEL, 4=b-AbS,
5=CALC, 6=tot, 7=HI, 8=LO
0=300, 1=600, 2=1200, 3=2400, 4=4.8k, 5=9.6k,
6=19.2k, 7=38.4k
0=No, 1=Ab-HI, 2=Ab-Lo, 3=AU-HI, 4=AU-LO, 5=dE-HI,
6=dE-LO, 7=bANd, 8=bNdIn, 9=totLo, 10=totHI
0=No, 1=Ab-HI, 2=Ab-Lo, 3=AU-HI, 4=AU-LO, 9=totLo,
10=totHI; Do not use 5-8.
40411
40401
40391
40381
Type
Type
Assignment
Assignment
0
0
0
0
2
2
6
6
1
2
0
0
Read/Write
Read/Write
Read/Write
Read/Write
0 = 0-20 mA, 1 = 4-20 mA, 2 = 0-10 V
0=RLC Protocol, 1=Modbus RTU, 2=Modbus ASCII
ANALOG OUTPUT PARAMETERS
SERIAL COMMUNICATIONS PARAMETERS
SETPOINT 4 OUTPUT PARAMETERS
SETPOINT 3 OUTPUT PARAMETERS
40409
40399
40389
40405
40395
40385
Load Serial Settings
Lit - Annunciator
Lit - Annunciator
Address
Off Delay
Off Delay
0
0
0
1
0
0
0
1
3
3
247
99
32750
32750
0
1
1
247
0
0
Read/Write
Read/Write
Read/Write
Read/Write
Read/Write
Read/Write
Read/Write
0=Off, 1=Normal, 2=Reverse, 3=Flash
0=Off, 1=Normal, 2=Reverse, 3=Flash
Modbus: 1-247
RLC Protocol: 0-99
1=0.1 Second
1=0.1 Second
40408
40398
40388
40416
40414
40404
40394
40384
Print Options
Standby
Standby
Analog High Value (Lo word)
Analog Low Value (Lo word)
Parity
On Delay
On Delay
0
0
0
0
0
0
63
1
1
2
32750
32750
0
0
0
0
0
0
Read/Write
Read/Write
Read/Write
Read/Write
Read/Write
Read/Write
0=No, 1 = Yes
0=No, 1 = Yes
0=None, 1=Even, 2=Odd
1=0.1 Second
1=0.1 Second
40417
40407
40397
40387
40415
40413
40403
40393
40383
Reset
Reset
Analog High Value (Hi word)
Analog Low Value (Hi word)
Data Bits
Hysteresis
Hysteresis
SEE MODULE 7 FOR DESCRIPTION OF PARAMETERS
0
0
0
0
-19999
-19999
0
1
1
100
1
2
2
99999
99999
1
65000
65000
0
0
0
10000
0
1
2
2
Read/Write
Read/Write
Read/Write
Read/Write
Read/Write
Read/Write
Read/Write
Read/Write
Read/Write
0=Max update rate, 1=0.1 second
0=No, 1=Yes
Not used when communications type is Modbus
0=Auto, 1=Latch1, 2=Latch2
0=Auto, 1=Latch1, 2=Latch2
0=7 bits, 1=8 bits
1=1 Display Unit
1=1 Display Unit
6=Tot5=Calc4=bAbs
3=b-Rel2=A-Abs1=A-Rel0=None
6=Tot5=Calc4=bAbs
3=b-Rel2=A-Abs1=A-Rel0=None
Update Time
Abbreviated Transmission (RLC
only)
0=No, 1=Yes
Not used when communications type is Modbus
Bit 0 - Print Input A Value
Bit 1 - Print Input B Value
Bit 2 - Print CALC Value
Bit 3 - Print Max & Min Values
Bit 4 - Print Total Value
Bit 5 - Print Setpoint Values
Changing 40401-40406 will not update the PAXDP until
this register is written with a 1. After the write, the
communicating device must be changed to the new
PAXDP settings and the register returns to 0.
SEE MODULE 8 FOR DESCRIPTION OF PARAMETERS
(APPLIES ONLY WHEN LINEAR OUTPUT CARD, PAXCDL
IS INSTALLED)
Display value that corresponds with 10 V or
20 mA output
Display value that corresponds with 0 V, 0 mA or
4 mA output
1For Input Registers, replace the 4xxxx with a 3xxxx in the above register address. The 3xxxx are a mirror of the 4xxxx Holding Registers.
2An attempt to exceed a limit will set the register to its high or low limit value.

E
4651-717-767-6511
REGISTER
ADDRESS 1REGISTER NAME LOW LIMIT 2HIGH LIMIT 2FACTORY
SETTING ACCESS COMMENTS
40506
40502
Total & Calculation Error
Factory Service Data Register
N/A
N/A
N/A
N/A
N/A
N/A
Read Only
Read/Write Factory Use Only - Do Not Modify
40501 Factory Service Register N/A N/A N/A Read/Write Factory Use Only - Do Not Modify
FACTORY SERVICE
41101-41116 GUID/Scratch N/A
40505
N/A
Input A/B Error
N/A
N/A
Read/Write
N/A
Reserved (may be used in future RLC software)
41001-41010
N/A
Slave ID N/A
Read Only
N/A N/A Read Only
40504 Power Up Errors N/A N/A N/A Read Only
40503 Main Display Number 0 3 1 Read/Write 0=Display_, 1=Display A, 2=Display B, 3=Display C
Bit Cleared = No Error, Bit Set = Error
Bit 0 = Input A Hardware Error (ErInA)
Bit 1 = Input B Hardware Error (ErInb)
Bit 2 = Key Stuck at power-up Error (ErKEY)
Bit 3 = Power Down Data Checksum Error (EEPdn)
Bit 4 = Parameter Checksum Error (EEPar)
Bit 5 = Calibration Data Checksum error (EECal)
Bit 6 = Linear Output Card Calibration Checksum Data
Error (EELin)
Bit Cleared = No Error, Bit Set = Error
Bit 0 = Input A Display Underflow (<-19999)
Bit 1 = Input A Display Overflow (>99999)
Bit 2 = Input A Signal Underrange (<13 V or <-26 mA)
Bit 3 = Input A Signal Overrange (>13 V or >26 mA)
Bit 4 = Input A Display Underflow (<-19999)
Bit 5 = Input A Display Overflow (>99999)
Bit 6 = Input A Signal Underrange (<13 V or <-26 mA)
Bit 7 = Input A Signal Overrange (>13 V or >26 mA)
Bit 0 = Calculation Display Underflow (<-19999)
Bit 1 = Calculation Display Overflow (>99999)
Bit 4 = Total Value Display Underflow (<-99999900)
Bit 5 = Total Value Display Overflow (>999999000)
RLC-PAXDP a b <0100h><20h><20h><10h>
16 Scratch
32 Reads
32 Writes
Version Number
b = Linear Card “0”=None, “1”=Yes
a = SP Card, “0”-No SP, “2” or “4” SP
(a = “0”, “2”, “4” SP card installed; b = “0” or “1” Linear
Card installed), 1.00 version (or higher)32 reads, 32
writes 16 scratch
1For Input Registers, replace the 4xxxx with a 3xxxx in the above register address. The 3xxxx are a mirror of the 4xxxx Holding Registers.
2An attempt to exceed a limit will set the register to its high or low limit value.
SERIAL RLC PROTOCOL COMMUNICATIONS
RLC Communications requires the Serial Communications Type Parameter
() be set to .
SENDING SERIAL COMMANDS AND DATA
When sending commands to the meter, a string containing at least one
command character must be constructed. A command string consists of a
command character, a value identifier, numerical data (if writing data to the
meter) followed by a the command terminator character * or $.
Command Chart
Command String Construction
The command string must be constructed in a specific sequence. The meter
does not respond with an error message to invalid commands. The following
procedure details construction of a command string:
1. The first characters consist of the Node Address Specifier (N) followed by a
1 or 2 character address number. The address number of the meter is
programmable. If the node address is 0, this command and the node address
itself may be omitted. This is the only command that may be used in
conjunction with other commands.
2. After the address specifier, the next character is the command character.
3. The next character is the Register ID. This identifies the register that the
command affects. The P command does not require a Register ID character.
It prints according to the selections made in print options.
4. If constructing a value change command (writing data), the numeric data is
sent next.
5. All command strings must be terminated with the string termination
characters * or $. The meter does not begin processing the command string
until this character is received. See Timing Diagram figure for differences
between terminating characters.
Initiates a block print output. Registers are
defined in programming.
Block Print Request
(read)
P
Reset a register or output. Must be followed
by register ID character
ResetR
Write to register of the meter. Must be followed
by register ID character and numeric data.
Value change (write)V
Read a register from the meter. Must be
followed by register ID character.
Transmit Value (read)T
Address a specific meter. Must be followed by
a one or two digit node address. Not required
when address = 0.
Node (Meter) Address
Specifier
N
NotesDescriptionCommand

E
466 www.redlion.net
Register Identification Chart
1. Register Names are also used as Register Mnemonics during full transmission.
2. The registers associated with the P command are set up in Print Options
(Module 7). Unless otherwise specified, the Transmit Details apply to both T
and V Commands.
Command String Examples:
1. Address = 17, Write 350 to Setpoint 1
String: N17VM350*
2. Address = 5, Read Input A value
String: N5TA*
3. Address = 0, Reset Setpoint 4 output
String: RS*
Transmitting Data To the Meter
Numeric data sent to the meter must be limited to Transmit Details listed in
the Register Identification Chart. Leading zeros are ignored. Negative numbers
must have a minus sign. The meter ignores any decimal point and conforms the
number to the scaled resolution. (ie. The meter’s scaled decimal point position
is set for 0.0 and 25 is written to a register. The value of the register is now 2.5.
In this case, write a value of 250 to equal 25.0).
Note: Since the meter does not issue a reply to value change commands, follow
with a transmit value command for readback verification.
Transmitting Data From the Meter
Data is transmitted from the meter in response to either a transmit command
(T), a print block command (P) or User Function print request. The response
from the meter is either a full field transmission or an abbreviated transmission.
See Abbreviated Printing () parameter.
Full Transmission
These characters only appear in the last line of a block print.
The first two characters transmitted (bytes 1 and 2) are the unit address. If the
address assigned is 00, two spaces are substituted. A space (byte 3) follows the
unit address field. The next three characters (bytes 4 to 6) are the register
mnemonic. The numeric data is transmitted next.
The numeric field (bytes 7 to 18) is 12 characters long. When the requested
value exceeds eight digits for count values or five digits for rate values. Byte 8
is always a space. The remaining ten positions of this field (bytes 9 to 18)
consist of a minus sign (for negative values), a floating decimal point (if
applicable), and eight positions for the requested value. The data within bytes 9
to 18 is right-aligned with leading spaces for any unfilled positions.
The end of the response string is terminated with <CR> (byte 19), and <LF>
(byte 20). When a block print is finished, an extra <SP> (byte 21), <CR> (byte
22), and <LF> (byte 23) are used to provide separation between the
transmissions.
Abbreviated Transmission
These characters only appear in the last line of a block print.
The abbreviated response suppresses the address and register mnemonics,
leaving only the numeric part of the response.
Meter Response Examples:
1. Address = 17, full field response, Input A = 875
17 INA 875 <CR><LF>
2. Address = 0, full field response, Setpoint 2 = -250.5
SP2 -250.5<CR><LF>
3. Address = 0, abbreviated response, Setpoint 2 = 250, last line of block print
250<CR><LF><SP><CR><LF>
Byte Description
1-12 12 byte data field, 10 bytes for number, one byte for sign, one byte
for decimal point
13 <CR> (Carriage return)
14 <LF> (Line feed)
15 <SP> (Space)
16 <CR> (Carriage return)
17 <LF> (Line feed)
<LF> (Line feed)
23
<CR> (Carriage return)
22
<SP> (Space)
21
<LF> (Line feed)20
3 byte Register Mnemonic field4-6
<SP> (Space)3
12 byte numeric data field: 10 bytes for number, one byte for sign, one
byte for decimal point
7-18
2 byte Node (Meter) Address field [00-99]1, 2
<CR> (Carriage return)19
DescriptionByte
OFB
SOR
Input B Offset
Setpoint Register
J
X
OFA
AOR
Input A Offset
Analog Output Register
I
W
ABB
MMRAuto/Manual Register
H
U
ABA
SP4Setpoint 4
G
S
MAX
SP3
Max
Setpoint 3
F
Q
MIN
SP2
Min
Setpoint 2
E
O
TOT
SP1
Tota l
Setpoint 1
D
M
CLCCalculation ValueC
INBB
INAA
REGISTER
NAME 1
VALUE DESCRIPTIONID COMMAND SUPPORTED2
T
T, R (reset command zeros Total)
T
T, V
T
T, V
T, V
T, V
T, V
T, R (reset command zeros
or tares input)
T, R (reset command zeros
or tares input)
Input A Absolute (Gross)
Value
Input B Absolute
(Gross) Value
T, V, R (reset command resets
setpoint output)
T, V, R (reset command resets
setpoint output)
T, V, R (reset command resets
setpoint output)
T, V, R (reset command resets
setpoint output)
Input A
Relative Value
Input B
Relative Value
T, R (reset command loads
current reading)
T, R (reset command loads
current reading)

E
4671-717-767-6511
COMMAND RESPONSE TIME
The meter can only receive data or transmit data at any one time (half-duplex
operation). When sending commands and data to the meter, a delay must be
imposed before sending another command. This allows enough time for the
meter to process the command and prepare for the next command.
At the start of the time interval t1, the computer program prints or writes the
string to the com port, thus initiating a transmission. During t1, the command
characters are under transmission and at the end of this period, the command
terminating character (*) is received by the meter. The time duration of t1 is
dependent on the number of characters and baud rate of the channel.
t1 = (10 * # of characters) / baud rate
At the start of time interval t2, the meter starts the interpretation of the
command and when complete, performs the command function. This time
interval t2 varies from 2 msec to 15 msec. If no response from the meter is
expected, the meter is ready to accept another command.
If the meter is to reply with data, the time interval t2 is controlled by the use
of the command terminating character and the Serial Transmit Delay parameter
(). The standard command line terminating character is '*'. This
terminating character results in a response time window of the Serial Transmit
Delay time () plus 15msec. maximum. The parameter should be
programmed to a value that allows sufficient time for the release of the sending
driver on the RS485 bus. Terminating the command line with '$' results in a
response time window (t2) of 2 msec minimum and 15 msec maximum. The
response time of this terminating character requires that sending drivers release
within 2 msec after the terminating character is received.
At the beginning of time interval t3, the meter responds with the first
character of the reply. As with t1, the time duration of t3 is dependent on the
number of characters and baud rate of the channel.
t3 = (10 * # of characters) / baud rate.
At the end of t3, the meter is ready to receive the next command. The
maximum serial throughput of the meter is limited to the sum of the times t1,
t2 and t3.
NO REPLY FROM METER
RESPONSE FROM METER
Timing Diagrams
Auto/Manual Mode Register (MMR) ID: U
This register sets the controlling mode for the outputs. In Auto Mode (0) the
meter controls the setpoint and analog output. In Manual Mode (1) the outputs
are defined by the registers SOR and AOR. When transferring from auto mode
to manual mode, the meter holds the last output value (until the register is
changed by a write). Each output may be independently changed to auto or
manual. In a write command string (VU), any character besides 0 or 1 in a field
will not change the corresponding output mode.
U abcde
e = Analog Output
d = SP4
c = SP3
b = SP2
a = SP1
Example: VU00011 places SP4 and Analog in manual.
Analog Output Register (AOR) ID: W
This register stores the present signal value of the analog output. The range
of values of this register is 0 to 4095, which corresponds to the analog output
range per the following chart:
*Due to the absolute
accuracy rating and
resolution of the output
card, the actual output
signal may differ 0.15% FS
from the table values. The
output signal corresponds
to the range selected (0-20
mA, 4-20 mA or 0-10 V).
Writing to this register (VW) while the analog output is in the Manual Mode
causes the output signal level to update immediately to the value sent. While in
the Automatic Mode, this register may be written to, but it has no effect until the
analog output is placed in the manual mode. When in the Automatic Mode, the
meter controls the analog output signal level. Reading from this register (TW)
will show the present value of the analog output signal.
Example: VW2047 will result in an output of 10.000 mA, 12.000 mA or
5.000V depending on the range selected.
Setpoint Output Register (SOR) ID: X
This register stores the states of the setpoint outputs. Reading from this
register (TX) will show the present state of all the setpoint outputs. A “0” in the
setpoint location means the output is off and a “1” means the output is on.
X abcd
d = SP4
c = SP3
b = SP2
a = SP1
In Automatic Mode, the meter controls the setpoint output state. In Manual
Mode, writing to this register (VX) will change the output state. Sending any
character besides 0 or 1 in a field or if the corresponding output was not first in
manual mode, the corresponding output value will not change. (It is not
necessary to send least significant 0s.)
Example: VX10 will result in output 1 on and output 2 off.
10.00020.000
9.997519.996
5.00012.000
0.00254.004
0.0004.000
0-10V4-20 mA
20.0004095
19.9954094
10.0002047
Output Signal*
Register Value
0.0051
0.0000
0-20 mA

E
468 www.redlion.net
COMMUNICATION FORMAT
Data is transferred from the meter through a serial communication channel.
In serial communications, the voltage is switched between a high and low level
at a predetermined rate (baud rate) using ASCII encoding. The receiving device
reads the voltage levels at the same intervals and then translates the switched
levels back to a character.
The voltage level conventions depend on the interface standard. The table
lists the voltage levels for each standard.
Data is transmitted one byte at a time with a variable idle period between
characters (0 to ∞). Each ASCII character is “framed” with a beginning start bit,
an optional parity bit and one or more ending stop bits. The data format and
baud rate must match that of other equipment in order for communication to
take place. The figures list the data formats employed by the meter.
Start bit and Data bits
Data transmission always begins with the start bit. The start bit signals the
receiving device to prepare for reception of data. One bit period later, the least
significant bit of the ASCII encoded character is transmitted, followed by the
remaining data bits. The receiving device then reads each bit position as they are
transmitted.
Parity bit
After the data bits, the parity bit is sent. The transmitter sets the parity bit to
a zero or a one, so that the total number of ones contained in the transmission
(including the parity bit) is either even or odd. This bit is used by the receiver
to detect errors that may occur to an odd number of bits in the transmission.
However, a single parity bit cannot detect errors that may occur to an even
number of bits. Given this limitation, the parity bit is often ignored by the
receiving device. The PAX meter ignores the parity bit of incoming data and
sets the parity bit to odd, even or none (mark parity) for outgoing data.
Stop bit
The last character transmitted is the stop bit. The stop bit provides a single bit
period pause to allow the receiver to prepare to re-synchronize to the start of a
new transmission (start bit of next byte). The receiver then continuously looks
for the occurrence of the start bit. If 7 data bits and no parity is selected, then 2
stop bits are sent from the PAXDP.
Character Frame Figure
LOGIC RS232* RS485*INTERFACE STATE
1TXD,RXD; -3 to -15 V a-b < -200 mVmark (idle)
0TXD,RXD; +3 to +15 V a-b > +200 mVspace (active)
* Voltage levels at the Receiver
5.8 MODULE 8 - ANALOG OUTPUT PARAMETERS ()
PARAMETER MENU
Enter the analog output type. For 0-20 mA or 4-20 mA
use terminals 18 and 19. For 0-10 V use terminals 16 and
17. Only one range can be used at a time.
ª
«
ª
«
ANALOG TYPE
ANALOG ASSIGNMENT
Enter the Display Value that corresponds to 0 mA (0-20
mA) , 4 mA (4-20 mA) or 0 VDC (0-10 VDC).
ª
«
ANALOG LOW SCALE VALUE
ª
«
ª
«
ANALOG HIGH SCALE VALUE
ANALOG UPDATE TIME
-19999 to 99999
-19999 to 99999
0.0 to 10.0
Enter the source for the analog output to retransmit:
rEL = Relative (net) Input Value. The Relative Input
Value is the Absolute Input Value that includes
the Display Offset Value.
AbS = Absolute (gross) Input Value. The Absolute Input
Value is based on Module 1 dSP and INP entries.
CALC = Calculation Value
tot = Totalizer Value
LO = Minimum Display Value
HI = Maximum Display Value
Enter the Display Value that corresponds to 20 mA (0-20
mA) , 20 mA (4-20 mA) or 10 VDC (0-10 VDC).
Enter the analog output update rate in seconds. A value
of 0.0 allows the meter to update the analog output at the
ADC Conversion Rate.
RANGE
0 to 20 mA
4 to 20 mA
0 to 10 V
SELECTION
NONE A-rEL A-Abs b-rEL
b-AbS CALC tot HI LO
Module 8 is the programming for the analog output parameter. To have an analog output signal, an analog output
plug-in card needs to be installed (See Ordering Information). This section replaces the bulletin that comes with
the analog plug-in card. Please discard the separate literature when using the plug-in card with the PAXDP.

E
4691-717-767-6511
5.9 MODULE 9 - FACTORY SERVICE OPERATIONS ()
PARAMETER MENU
Enter the desired Display Intensity Level (0-15) by
using the arrow keys. The display will actively dim or
brighten as the levels are changed. This parameter also
appears in Quick Programming Mode when enabled.
DISPLAY INTENSITY LEVEL
ª
«
The meter has been fully calibrated at the factory.
Scaling to convert the input signal to a desired display
value is performed in Module 1. If the meter appears to be
indicating incorrectly or inaccurately, refer to
Troubleshooting before attempting to calibrate the meter.
When recalibration is required (generally every 2 years), it should only be
performed by qualified technicians using appropriate equipment. Calibration
does not change any user programmed parameters. However, it may affect the
accuracy of the input signal values previously stored using the Apply ()
Scaling Style.
Calibration may be aborted by disconnecting power to the meter before
exiting Module 9. In this case, the existing calibration settings remain in effect.
CALIBRATION
ª
«
ª
«
RESTORE FACTORY DEFAULTS
Use the arrow keys to display and press PAR.
The meter will display and then return to .
Press DSP key to return to Display Mode. This will
overwrite all user settings with the factory settings.
ANALOG OUTPUT CARD CALIBRATION
Before starting, verify that the precision voltmeter (voltage output) or current
meter (current output) is connected and ready. Perform the following procedure:
1. Use the arrow keys to display and press PAR.
2. Use the arrow keys to choose and press PAR.
3. Using the chart below, step through the five selections to be calibrated. At
each prompt, use the PAX arrow keys to adjust the external meter display to
match the selection being calibrated. When the external reading matches, or
if this range is not being calibrated, press PAR.
4. When appears remove the external meters and press PAR twice.
SELECTION EXTERNAL METER ACTION
0.00 Adjust if necessary, press PAR
4.00 Adjust if necessary, press PAR
20.00 Adjust if necessary, press PAR
0.00 Adjust if necessary, press PAR
10.00 Adjust if necessary, press PAR
WARNING: Calibration of this meter requires a signal source with an
accuracy of 0.01% or better and an external meter with an accuracy of
0.005% or better.
Before starting, verify that the Input Ranger Jumper is set for the range to be
calibrated. Also verify that the precision signal source is connected and ready.
Allow a 30 minute warm-up period before calibrating the meter. and PAR
can be chosen to exit the calibration mode without any changes taking place.
Then perform the following procedure:
1. Use the arrow keys to display ( ) and press PAR.
2. Choose the input channel/range to be calibrated by using the arrow keys and
press PAR. ( and PAR can be chosen to exit the calibration mode without
any changes taking place.)
3. When the zero range limit appears on the display, apply the appropriate:
- Voltage range: dead short applied
- Current range: open circuit
4. Press PAR and the top range limit will appear on the display after
approximately 1 second.
5. With the top range limit on the display, apply the appropriate:
- Voltage range: 10 VDC
- Current range: 20 mADC
6. Press PAR and . will appear on the display after approximately 1
second.
7. When appears, press PAR twice.
8. If the meter is not field scaled, then the input display should match the value
of the input signal.
9. Repeat the above procedure for each input range to be calibrated.
INPUT CALIBRATION

E
470 www.redlion.net
TROUBLESHOOTING
CHECK: Active (lock-out) user input
ENTER: Security code requested
PRESS: Reset KEY (If cannot clear contact factory.)ERROR CODE (Err xxx or EE xxx)
CHECK: Corresponding plug-in card installationMODULES or PARAMETERS NOT ACCESSIBLE
INCREASE: Module 1 filtering, rounding, input range
CHECK: Wiring is per EMC installation guidelines
JITTERY DISPLAY
CHECK: Module 1 programming, Input Range Jumper position, input connections, input signal level“ULUL” in DISPLAY (SIGNAL LOW)
CHECK: Module 1 programming, Input Range Jumper position, input connections, input signal level“OLOL” in DISPLAY (SIGNAL HIGH)
CHECK: Module 1 programming, Input Jumper position, input connections, input signal level,
Module 4 Display Offset is zero, press DSP for Input Display
PERFORM: Module 9 Calibration (If the above does not correct the problem.)
INCORRECT INPUT DISPLAY VALUE
CHECK: Module 3 programmingDISPLAY LOCKED-OUT
PROGRAM LOCKED-OUT
CHECK: Power level, power connections, Module 3 programmingNO DISPLAY
REMEDIESPROBLEM
For further assistance, contact technical support at the appropriate company numbers listed.
PARAMETER VALUE CHART Programmer ________________ Date ________
PAXDP MODEL NUMBER ________ Meter# _____________ Security Code ________
1-INP Signal Input Parameters
INPUT VALUE 3
INPUT VALUE 5
INPUT VALUE 4
INPUT VALUE 6
DISPLAY VALUE 3
DISPLAY VALUE 5
DISPLAY VALUE 4
DISPLAY VALUE 6
INP 3
INP 5
INP 4
INP 6
dSP 3
dSP 5
dSP 4
dSP 6
DISPLAY VALUE 2
dSP 2
INPUT VALUE 2
INP 2
DISPLAY VALUE 1
dSP 1
INPUT VALUE 1
INP 1
2
Ey
SCALING POINTS
SCALING STYLE
PtS
StyLE
FILTER ENABLE BAND
bANd
FILTER SETTING
FILtr
DISPLAY ROUNDING
INCREMENT
round
DISPLAY RESOLUTION
dECPt
VoLt
UPDATE RANGE
INPUT RANGE
rAtE
rANGE
INPUT B
USER SETTING
INPUT A
USER SETTING
FACTORY
SETTING
PARAMETERDISPLAY
INPUT VALUE 7
DISPLAY VALUE 12
INPUT VALUE 9
DISPLAY VALUE 14
INPUT VALUE 8
DISPLAY VALUE 13
DISPLAY VALUE 11
INPUT VALUE 10
DISPLAY VALUE 15
DISPLAY VALUE 7
INPUT VALUE 13
INPUT VALUE 11
DISPLAY VALUE 9
DISPLAY VALUE 16
INPUT VALUE 15
DISPLAY VALUE 8
INPUT VALUE 14
INPUT VALUE 12
DISPLAY VALUE 10
INPUT VALUE 16
INP 7
dSP 12
INP 9
dSP 14
INP 8
dSP 13
dSP 11
INP 10
dSP 15
dSP 7
INP 13
INP 11
dSP 9
dSP 16
INP 15
dSP 8
INP 14
INP 12
dSP 10
INP 16
INPUT A
USER SETTING
FACTORY
SETTING
PARAMETERDISPLAY INPUT B
USER SETTING

E
4711-717-767-6511
5-tOt Totalizer (Integrator) Parameters
8-Out Analog Output Parameters
7-SrL Serial Communication Parameters
DISPLAY PARAMETER FACTORY
SETTING USER SETTING
asIN
dECPt
TOTALIZER ASSIGNMENT
TOTALIZER DECIMAL POINT
A-rEL
tbASE TOTALIZER TIME BASE
SCFAC TOTALIZER SCALE FACTOR
Locut TOTALIZER LOW CUT VALUE
P-uP TOTALIZER POWER-UP RESET NO
DISPLAY PARAMETER FACTORY
SETTING USER SETTING
tYPE
bAUd
COMMUNICATIONS TYPE
BAUD RATE
38400
dAtA DATA BIT 8
PAr PARITY BIT NO
dELAY
Addr
TRANSMIT DELAY
METER ADDRESS
247
INP b
INP A
Opt
Abrv
INPUT A VALUE
PRINT OPTIONS
ABBREVIATED PRINTING
NO
NO
NO
NO
CALC CALCULATION NO
tot PRINT TOTAL VALUE NO
HILO PRINT MAX & MIN VALUES NO
SPNt NO
PRINT SETPOINT VALUES
PARAMETER FACTORY
SETTING USER SETTING
tYPE 4-20
ASIN ANALOG ASSIGNMENT 0
AN-LO ANALOG LOW SCALE VALUE 0
AN-HI ANALOG HIGH SCALE VALUE 10000
udt ANALOG UPDATE TIME
ANALOG TYPE
DISPLAY
9-FCS Factory Setting Parameters
*Select alternate list to program these values.
4-SEC Secondary Function Parameters
FACTORY
SETTING USER SETTINGPARAMETERDISPLAY
OFF
CALCULATION FILTER SETTING
UNITS LABEL BACKLIGHT
C fLt
b-LIt
C bNd
1
A-rEL
CALCULATION ROUNDING
CALCULATION DECIMAL POINT
DISPLAY UPDATE TIME
MAX CAPTURE ASSIGNMENT
C rnd
C dP
dSP-t
HI-AS
A-rEL
D"C
MIN CAPTURE ASSIGNMENT
CALCULATION CONSTANT VALUE
CALCULATION FUNCTION
MIN CAPTURE DELAY TIME
INPUT B OFFSET VALUE
LO-AS
conSt
CFunc
LO-t
OFS-b
MAX CAPTURE DELAY TIME
INPUT A OFFSET VALUE
HI-t
OFS-A
CALCULATION FILTER BAND 3
DISPLAY INTENSITY LEVEL
d-LEV
USER SETTING
FACTORY
SETTING
PARAMETERDISPLAY
2-FNC User Input and Function Key Parameters
DISPLAY PARAMETER USER SETTING
FACTORY
SETTING
USr-1 USER INPUT 1 NO
USr-2 USER INPUT 2 NO
F1 FUNCTION KEY 1 NO
F2 FUNCTION KEY 2 NO
rSt RESET KEY NO
Sc-F1 2nd FUNCTION KEY 1 NO
Sc-F2 2nd FUNCTION KEY 2 NO
3-LOC Display and Program Lockout Parameters
CALCULATION ASSIGNMENT
TOTAL DISPLAY LOCKOUT
INPUT B ASSIGNMENT
MIN DISPLAY LOCKOUT
0
SECURITY CODE
COdE
LOC
LOC
SETPOINT 2 ACCESS
SETPOINT 4 ACCESS
SP-2
SP-4
LOC
LOC
SETPOINT 1 ACCESS
SETPOINT 3 ACCESS
SP-1
SP-3
dSP-C
LOC
CALC
dSP-b
LOC
dSP-a
LOC
INPUT A ASSIGNMENT
MAX DISPLAY LOCKOUT
INP b
LO
INP A
HI
FACTORY
SETTING USER SETTINGPARAMETERDISPLAY
INPUT B VALUE
6-SPt Setpoint (Alarm) Parameters
DISPLAY PARAMETER FACTORY
SETTING USER SETTING FACTORY
SETTING
SP-1
ACt-n SETPOINT ACTION NO
SP-n SETPOINT VALUE (main) 100
HYS-n SETPOINT HYSTERESIS 2
tON-n ON TIME DELAY
tOF-n OFF TIME DELAY
out-n OUTPUT LOGIC nor
rSt-n RESET ACTION AUto
Stb-n STANDBY OPERATION NO
Lit-n SETPOINT ANNUNCIATORS nor
USER SETTING
SP-2
NO
SETPOINT VALUE (alternate) * 100
200
2
nor
AUto
NO
nor
200
FACTORY
SETTING USER SETTING FACTORY
SETTING
SP-3
NO
300
2
nor
AUto
NO
nor
USER SETTING
SP-4
NO
300
400
2
nor
AUto
NO
nor
400
SPSEL SELECT SETPOINT NO
ASN-n SETPOINT ASSIGNMENT NONE
NO
NONE
NO
NONE
NO
NONE
Shaded area available when communications type is .

E
472 www.redlion.net
PAXDP PROGRAMMING QUICK OVERVIEW

E
4731-717-767-6511
3 1/2-DIGIT, 0.56" (14.2 mm) HIGH LED READOUT
HIGH SENSITIVITY, 10 mV FULL SCALE
WIDE RANGE GAIN AND OFFSET ADJUSTMENTS
BUILT-IN EXCITATION 5 OR 10 VDC
APPLICABLE AS REGULAR MILLIVOLT INDICATOR
(Single-ended or Differential Input)
SELECTABLE DECIMAL POINTS
OVER-RANGE INDICATION
NEMA 4X/IP65 SEALED FRONT BEZEL
OPTIONAL CUSTOM UNITS OVERLAY WITH BACKLIGHT
GENERAL DESCRIPTION
The Model PAXLSG expands the PAX Lite capabilities into the indication of
pressure, load, force, and other parameters measured with strain gages. The unit
features broad range scaling and can be used with a wide variety of strain gage
resistances and bridge configurations. A built-in excitation source is jumper
selectable for 5 or 10 VDC @ 120 mA maximum, and can power up to four full
350 Ωbridges in load averaging applications. Although designed primarily for
strain-gage indication, the PAXLSG is also ideal for single-ended or differential
millivolt input applications, with full-scale input ranges from 0 to 10 mV thru 0
to 2 VDC. Adjustable scaling and offset allow direct readout in nearly any
engineering unit.
The meter has a NEMA 4X/IP65 sealed bezel and extensive testing of noise
effects to CE requirements, allowing the meter to provide a tough yet reliable
application solution.
SAFETY SUMMARY
All safety related regulations, local codes and instructions that appear in the
literature or on equipment must be observed to ensure personal safety and to
prevent damage to either the instrument or equipment connected to it. If
equipment is used in a manner not specified by the manufacturer, the protection
provided by the equipment may be impaired.
MODEL PAXLSG - PAX LITE STRAIN GAGE METER /
MILLIVOLT METER
DIMENSIONS In inches (mm) Note: Recommended minimum clearance (behind the panel) for mounting clip installation is
2.1" (53.4) H x 5.0" (127) W.
CAUTION: Risk of Danger.
Read complete instructions prior to
installation and operation of the unit.
CAUTION: Risk of electric shock.
C
C
US LISTED
US LISTED
UL
R
IND. CONT. EQ.
51EB

E
474 www.redlion.net
Ordering Information . . . . . . . . . . . . . . . . . . . 2
General Meter Specifications. . . . . . . . . . . . . 3
Accessories . . . . . . . . . . . . . . . . . . . . . . . . . 3
Installing the Meter . . . . . . . . . . . . . . . . . . . . 4
Setting the Jumpers and Switches . . . . . . . . 4
Wiring the Meter . . . . . . . . . . . . . . . . . . . . . . 5
Scaling the Meter . . . . . . . . . . . . . . . . . . . . . 6
Calibrating the Meter. . . . . . . . . . . . . . . . . . . 7
Applications . . . . . . . . . . . . . . . . . . . . . . . . . 8
TABLE OFCONTENTS
ORDERING INFORMATION
PAXL 0
0
SG - Strain Gage Meter
SG
Meter Part Numbers
Accessories Part Numbers
PAXLBK30Units Label Kit Accessory PAXLBKAccessories
TYPE PART NUMBERSDESCRIPTIONMODEL NO.

E
4751-717-767-6511
1. DISPLAY: 3 1/2-digit, 0.56" (14.2 mm) high, 7-segment LED, (-) minus sign
displayed when voltage is negative. Decimal points inserted before 1st, 2nd,
or 3rd least significant digits by DIP switch selection.
2. OVER-RANGE INDICATION: Indicated by blanking 3 least significant
digits.
3. POWER:
AC Power: 85 to 250 VAC, 50/60 HZ, 6 VA
Isolation: 2300 Vrms for 1 min. to all inputs.
4. INPUT SIGNAL: Single-ended or differential input, ±2.0 V max. Gain
(Sensitivity) is adjustable from 200 Units of Numerical Readout/millivolt input
(gives full scale readout of 1999 at 10 mV input), to less than 1 Unit of
Numerical Readout/mV (gives full scale readout of 1999 at 2.0 V input).
Maximum common mode voltage swing with respect to signal ground, 0 to 7 V.
Note: Absolute maximum voltage that can be applied between the two input
terminals or between input and signal common is 50 VDC.
5. INPUT IMPEDANCE: 100 MΩ
6. LINEARITY: ±(0.05% ±1 digit)
7. LOW FREQUENCY NOISE REJECTION:
Normal Mode Rejection: 84 dB @ 50/60 Hz
Common Mode Rejection: 50 dB with respect to excitation common;
110 dB with respect to earth ground.
8. RESPONSE TIME: 2.0 seconds to settle from step input.
9. READING RATE: 2.5 updated readings/second, nominal.
10. EXCITATION SUPPLY:
Jumper Selectable: 5 VDC @ 60 mA max., ±2%
10 VDC @ 120 mA max., ±2%
Temperature coefficient (ratio metric): 20 ppm/°C max.
11. ENVIRONMENTAL CONDITIONS:
Operating Temperature: 0° to 60°C
Storage Temperature: -40° to 80°C
Operating and Storage Humidity: 85% max. relative humidity (non-
condensing)
Span Temperature Coeff.: 100 PPM/°C
Offset Temperature Coeff.: 100 PPM/°C
Altitude: Up to 2000 meters
12. CERTIFICATIONS AND COMPLIANCES:
SAFETY
UL Recognized Component, File # E179259, UL61010A-1, CSA C22.2 No. 61010-1
Recognized to U.S. and Canadian requirements under the Component
Recognition Program of Underwriters Laboratories, Inc.
UL Listed, File # E137808, UL508, CSA C22.2 No. 14-M95
LISTED by Und. Lab. Inc. to U.S. and Canadian safety standards
Type 4X Enclosure rating (Face only), UL50
IECEE CB Scheme Test Certificate # UL/8843A/UL
CB Scheme Test Report # 04ME11209-20041018
Issued by Underwriters Laboratories, Inc.
IEC 61010-1, EN 61010-1: Safety requirements for electrical equipment
for measurement, control, and laboratory use, Part 1.
IP65 Enclosure rating (Face only), IEC 529
IP20 Enclosure rating (Rear of unit), IEC 529
ELECTROMAGNETIC COMPATIBILITY
Emissions and Immunity to EN 61326: Electrical Equipment for
Measurement, Control and Laboratory use.
Notes:
1. Criterion A: Normal operation within specified limits.
2. Criterion B: Temporary loss of performance from which the unit self-
recovers.
13. CONNECTIONS: High compression cage-clamp terminal block
Wire Strip Length: 0.3" (7.5 mm)
Wire Gage: 30-14 AWG copper wire
Torque: 4.5 inch-lbs (0.51 N-m) max.
14. CONSTRUCTION: This unit is rated for NEMA 4X/IP65 outdoor use.
IP20 Touch safe. Installation Category II, Pollution Degree 2. One piece
bezel/case. Flame resistant. Panel gasket and mounting clip included.
15. WEIGHT: 0.65 lbs (0.24 kg)
GENERAL METER SPECIFICATIONS
ACCESSORIES
UNITS LABEL KIT (PAXLBK)
Each meter has a units indicator with backlighting that can be customized
using the Units Label Kit. The backlight is controlled by a DIP switch.
Immunity to Industrial Locations:
Electrostatic discharge EN 61000-4-2 Criterion A
4 kV contact discharge
8 kV air discharge
Electromagnetic RF fields EN 61000-4-3 Criterion B
10 V/m
2 kV L&N-E power
Fast transients (burst) EN 61000-4-4 Criterion B
2 kV power
2 kV signal
Surge EN 61000-4-5 Criterion A
1 kV L-L,
1 kV signal
RF conducted interference EN 61000-4-6 Criterion A
3 V/rms
Power frequency magnetic fields EN 61000-4-8 Criterion A
30 A/m
Voltage dip/interruptions EN 61000-4-11 Criterion A
0.5 cycle
Emissions:
Emissions EN 55011 Class B

E
476 www.redlion.net
The meter has switches that must be checked and/or changed prior to
applying power. To access the switches, remove the meter base from the case by
firmly squeezing and pulling back on the side rear finger tabs. This should lower
the latch below the case slot (which is located just in front of the finger tabs). It
is recommended to release the latch on one side, then start the other side latch.
Excitation Range Jumper
A jumper is used for selection of the 5 or 10 volt range. It is important that
only one jumper position is used at a time.
Set-Up DIP Switches
Two banks of DIP switches are located inside the meter. The 9 position bank
of switches is used for calibrating the meter. The values of these switches is
discussed in section 5.0 Calibrating the Meter.
The bank of 4 switches located near the front display are used for the
selection of decimal points and backlight annunciator. Selecting “ON” position
enables the function.
PAXLSG Jumper Selection
JUMPER SELECTIONS
The indicates factory setting.
Main
Circuit
Board
D.P./ BACKLIGHT
REAR TERMINALS
FRONT DISPLAY
4
3
2
1
ON
OFFSET SPAN
ON
123456789
OFFSET
GAIN
EXCITATION
SELECT
COARSE FINE
2.0 SETTING THE SWITCHES AND JUMPERS
1.0 INSTALLING THE METER
Installation
The PAX meets NEMA 4X/IP65 requirements when properly installed. The
unit is intended to be mounted into an enclosed panel. Prepare the panel cutout
to the dimensions shown. Remove the panel latch from the unit. Slide the panel
gasket over the rear of the unit to the back of
the bezel. The unit should be installed
fully assembled. Insert the unit into
the panel cutout.
While holding the unit in place, push the panel latch over the rear of the unit
so that the tabs of the panel latch engage in the slots on the case. The panel latch
should be engaged in the farthest forward slot possible. To achieve a proper seal,
tighten the latch screws evenly until the unit is snug in the panel (Torque to
approximately 7 in-lbs [79N-cm]). Do not over-tighten the screws.
Installation Environment
The unit should be installed in a location that does not exceed the maximum
operating temperature and provides good air circulation. Placing the unit near
devices that generate excessive heat should be avoided.
The bezel should be cleaned only with a soft cloth and neutral soap product.
Do NOT use solvents. Continuous exposure to direct sunlight may accelerate the
aging process of the bezel.
PANEL CUT-OUT
Backlight Annunciator for Units Label4
Decimal Point 3 (0.000)3
Decimal Point 2 (00.00)2
Decimal Point 1 (000.0)1
FUNCTIONSWITCH

E
4771-717-767-6511
3.0 WIRING THE METER
3.1 POWER WIRING
WIRING OVERVIEW
Electrical connections are made via screw-clamp terminals located on the
back of the meter. All conductors should conform to the meter’s voltage and
current ratings. All cabling should conform to appropriate standards of good
installation, local codes and regulations. It is recommended that power supplied
to the meter (AC) be protected by a fuse or circuit breaker.
When wiring the meter, compare the numbers embossed on the back of the
meter case against those shown in wiring drawings for proper wire position. Strip
the wire, leaving approximately 0.3" (7.5 mm) bare lead exposed (stranded wires
should be tinned with solder). Insert the lead under the correct screw-clamp
terminal and tighten until the wire is secure. (Pull wire to verify tightness.)
EMC INSTALLATION GUIDELINES
Although this meter is designed with a high degree of immunity to Electro-
Magnetic Interference (EMI), proper installation and wiring methods must be
followed to ensure compatibility in each application. The type of the electrical
noise, its source or the method of coupling into the unit may be different for
various installations. Listed below are some EMC guidelines for successful
installation in an industrial environment.
1. The meter should be mounted in a metal enclosure, which is properly
connected to protective earth.
2. Never run Signal or Control cables in the same conduit or raceway with AC
power lines, conductors feeding motors, solenoids, SCR controls, and
heaters, etc. The cables should be run in metal conduit that is properly
grounded. This is especially useful in applications where cable runs are long
and portable two-way radios are used in close proximity or if the installation
is near a commercial radio transmitter.
3. Signal or Control cables within an enclosure should be routed as far away as
possible from contactors, control relays, transformers, and other noisy
components.
4. In extremely high EMI environments, the use of external EMI suppression
devices, such as ferrite suppression cores, is effective. Install them on Signal
and Control cables as close to the unit as possible. Loop the cable through the
core several times or use multiple cores on each cable for additional protection.
Install line filters on the power input cable to the unit to suppress power line
interference. Install them near the power entry point of the enclosure. The
following EMI suppression devices (or equivalent) are recommended:
Ferrite Suppression Cores for signal and control cables:
Fair-Rite # 0443167251 (RLC #FCOR0000)
TDK # ZCAT3035-1330A
Steward #28B2029-0A0
Line Filters for input power cables:
Schaffner # FN610-1/07 (RLC #LFIL0000)
Schaffner # FN670-1.8/07
Corcom #1VR3
Note: Reference manufacturer’s instructions when installing a line filter.
5. Long cable runs are more susceptible to EMI pickup than short cable runs.
Therefore, keep cable runs as short as possible.
6. Switching of inductive loads produces high EMI. Use of snubbers across
inductive loads suppresses EMI.
Snubber: RLC#SNUB0000.
AC Power
Terminal 1: VAC
Terminal 2: VAC
Excitation Power
Terminal 3: Common
Terminal 4: Excitation +
DEADLOAD COMPENSATION
In some cases, the combined deadload and liveload output may exceed the
range of the input. To use this range, the output of the bridge can be offset a
small amount by applying a fixed resistor across one arm of the bridge. This
shifts the electrical output of the bridge downward to within the operating range
of the meter. A 100 K ohm fixed resistor shifts the bridge output approximately
-10 mV (350 ohm bridge, 10 V excitation).
Connect the resistor between +SIG and -SIG. Use a metal film resistor with a
low temperature coefficient of resistance.
BRIDGE COMPLETION RESISTORS
For single strain gage applications, bridge completion resistors must be
employed externally to the meter. Only use metal film resistors with a low
temperature coefficient of resistance.
Load cells and pressure transducers are normally implemented as full
resistance bridges and do not require bridge completion resistors.
3.2 INPUT SIGNAL WIRING
4-Wire Bridge Input
2-Wire Single Ended Input 6-Wire Bridge Input

E
478 www.redlion.net
DESCRIPTION OF OPERATION
The Pax Lite Strain Gage Indicator (PAXLSG) consists of a digital voltmeter
combined with a high-gain, differential input amplifier that has provision for wide
range scaling adjustment (shown above). The unit also incorporates an excitation
power supply (5 or 10 VDC) that delivers up to 120 mA. In the simplified
schematic above, K1, K2, and K3 form a high-gain, high-stability, differential
input preamplifier with a single ended output. The gain of this preamplifier is set
up by coarse gain select switches S5 through S9. These switches can be turned on
in combination to provide discrete steps of gain-range adjustment. The output of
the preamplifier (K3 output) is applied to the summing amplifier (K4) through
coarse and fine adjustable potentiometers. These adjustable potentiometers
provide final vernier gain adjustment over a range of slightly more than 2:1. An
adjustable offset voltage signal is also added in at the input of K4 for zero-balance
or for applications where the transfer curve must be offset from zero.
GAIN ADJUSTMENTS
Gain is defined as the Units of Numerical change seen on the display per mV
(millivolt) of input signal change (disregarding display decimal points). In effect,
gain determines the slope of the transfer curve and is expressed in Units/mV.
GAIN = (Max. Num. Readout) - (Min. Num. Readout)
(Max. mV Input Sig.) - (Min. mV Input Sig.)
Note: Disregarded Decimal Points in Readout.
For example, if an PAXLSG is to display 50.0 @ 2 mV (min.) and 169.0 @
19 mV (max.), the required gain will be:
GAIN = 1690 Units - 500 Units
19 mV - 2 mV
Note: Remember, display decimal points are disregarded.
To establish this gain, the settings of the coarse gain select switches must first
be determined. These switches establish the maximum end of the 2:1 adjustment
range of the coarse and fine vernier gain adjustments.
COARSE GAIN SELECT SWITCHES
Each of the coarse gain select switches is marked with the amount of
maximum gain it will contribute when turned on. They are turned on singly or
in combination (adding up each of their gain contributions), to arrive at a
maximum gain value that is just above the desired gain value. To achieve the
desired gain of 70 Units/mV in the example just given, the following switches
would be turned on:
S6 (Gain 50) + S7 (Gain 16) + S8 (Gain 6.6) = 72.6 Units/mV
With these switches ON, the coarse and fine vernier adjustments cover a gain
range from about 36 Units/mV (½ of max.) to 72.6 Units/mV. The required gain
of 70 Units/mV falls within this adjustable range.
COARSE AND FINE GAIN ADJUSTMENTS
Once the gain select switches have been set, the final gain calibration is made
with the Coarse and Fine Gain adjustments. Both of these adjustments are 15-
Turn, screwdriver adjustable potentiometers that increase gain with clockwise
rotation. The Coarse adjustment has a 2:1 range. The Fine adjustment has a
range of 5-10% (depending on the setting of the Coarse adjustment). Both pots
are located at the rear of the meter.
OFFSET ADJUSTMENTS
Offset adjustments move the transfer curve up-and-down along the vertical axis
without changing the slope (Gain). They are used to “balance” the output of
transducers or to intentionally introduce an offset, such as tare-load compensation.
The Fine Offset Adjustment is a 15-turn screwdriver adjustable potentiometer,
located at the rear of the meter. It has a range of ±125 Numerical Units of offset
which is sufficient for balancing the output of most transducers.
The Coarse Offset Switches (S2, 3, and 4) can be used to add additional steps
of offset. Like the coarse gain select switches, the offset switches are marked
with the approximate value of offset contributed by each switch, and they can
be turned on in combinations with each switch, contributing its value to the
total. Switch S1 selects the polarity of the offset signal and can be set to either
add or subtract the offset contribution of the switches. The maximum offset that
can be obtained with all switches ON and the Fine Offset at its maximum is
±1000, which is one half of the full scale readout.
= 70 Units/mV
PAXLSG SCHEMATIC
4.0 SCALING THE METER

E
4791-717-767-6511
There are three different methods that can be used to calibrate the PAXLSG,
and the method chosen depends largely on the nature of the application. The
three methods are:
VOLTAGE CALIBRATION
In this method, the transducer signal is simply replaced with an accurately
measured input voltage that can be varied through the range normally delivered
by the transducer (See Voltage Calibration Circuit, below). The PAXLSG is then
adjusted to provide the proper readout.
SYSTEM CALIBRATION
In this method, the transducer is connected to the input of the PAXLSG in the
final installation, or in a bench set-up simulating the actual installation.
Accurately known inputs are then applied to the transducer (i.e. load, pressure,
force, etc.), and the PAXLSG adjustments are made to provide the desired
indication. This method is usually preferable to the Voltage Calibration method
since it calibrates both the transducer and the PAXLSG as a combination, and
reduces the inherent risk of inaccuracy or errors accumulated by separate
calibration. However, it can only be used in applications where the parameter to
be indicated can be easily varied and accurately measured or established. It is
also very awkward to use if an offset or transducer unbalance must be dealt with
because of Offset/Gain adjustment interaction.
COMBINATION VOLTAGE/SYSTEM CALIBRATION
In applications where tare-load, offset, or substantial transducer unbalance
exists and where high accuracy is required in the final indication, it may be
desirable to voltage calibrate the unit first to get it very close to its final settings.
Then, after final installation, the unit can be “tweaked” to its final settings while
using accurately known inputs to the system. These various factors make it
impossible to set up one calibration procedure to cover all applications.
However, using the following information on Voltage Calibration together with
the examples given should provide a good basis for handling virtually any
calibration requirement.
CALIBRATION EXAMPLE
“Voltage Calibration” can be easily performed for any application, using the
calibration circuit shown below.
VOLTAGE CALIBRATION CIRCUIT
This 350 Ohms “Dummy Bridge” circuit delivers calibration voltages in
ranges of 0 to ±22 mV, 0 to +44 mV, or 0 to -44 mV, depending on the setting
of R2. The range can be increased or decreased by adjusting the value of R3
(shown as 40 K). An accurate reference millivoltmeter is used to set up the
calibration voltage, and a “Zero Switch” facilitates balancing without
readjusting the calibration voltage. High-stability metalized resistors (1% tol.)
should be used. The use of a dummy bridge insures a common-mode voltage
during calibration that is very similar to that of the actual transducer.SET-UP:
Before starting the procedure, the Input Swing Voltage (Vs), the Readout
Span (Rs) and the required GAIN must be determined.
WHERE:
Rs = (Max. Numerical Display) - (Min. Numerical Display) Disregard Decimal Points
Vs = (mV in @ Max. Display) - (mV in @ Min. Display)
GAIN = Rs = Units/mV
Vs
EXAMPLE: Readout is to be 5.00 Units @ 2 mV minimum, and 15.00 Units
@ 18 mV maximum. The transducer is a 350 Ωstrain-gage bridge requiring
10 VDC excitation.
Rs = 1500 - 500 = 1000 Units
Vs = 18 mV - 2 mV = 16 mV
GAIN = 1000 = 62.5 Units/mV
16
Note: While most strain gage readout applications are zero-based (i.e. zero
readout @ zero input) this example was intentionally chosen because it included
an offset reading at zero input. It will be used in the Calibration Procedure
below to illustrate the most convenient way to handle offset situations without
excessive interaction of gain and offset adjustments. If a zero-based example
had been given, the minimum readout and input voltage would have both been
zero. Rs and Vs would then simply be the maximum values of readout and input
voltage respectively, gain would just be the ratio of (Max. Readout/Max. Input
mV), and Steps 7 and 8 of the procedure below could be eliminated.
CALIBRATION PROCEDURE
1. Set the Coarse Gain Select Switches, S5 through S9 to establish a maximum
range just exceeding the required gain. Referring to the example given, the
required gain was calculated to be 62.5 Units/mV. Setting switches S6 and S7
ON gives 50 + 16 = 66 Units/mV, which is just above the required amount. The
following chart gives an approximate gain adjustment value for each switch:
All offset switches, S2, 3, and 4, should be off.
2. Connect the unit to the Calibration Circuit as shown. Set the excitation
voltage range jumper to the 10 V position.
3. Place unit in the case and turn power on to the unit. Allow 10 minutes of
warm-up time for stabilization.
4. Close the “Zero Switch” of the calibration circuit to obtain zero input voltage.
Adjust the fine offset control to get a zero readout.
5. Open the “Zero Switch” of the calibrating circuit and set the input voltage to
the calculated swing voltage, Vs. (Vs is 16 mV in the example given.) Now,
adjust the Gain Coarse and Fine Controls to get a readout equal to the
Readout Span.
(Rs = 1000 Units in the example given.)
6. Repeat Step 4 and readjust zero if required. If zero readjustment was needed,
repeat Step 5, then back to Step 4, etc., until Zero and Rs readings are
acceptable.
*7. Set the calibration voltage to the minimum input level (2 mV in this
example). Record the meter reading (125 in this example). Power the meter
down and remove it from the case. Set the Coarse Offset Select Switches to
get the corresponding minimum readout (add the switch offset value(s) to the
recorded meter reading). In the example given, the minimum readout was
500 units @ 2 mV, therefore setting switches 3 and 4 gives us 125 (meter
reading) + 125 (SW4) + 250 (SW3) = 500. The following chart gives an
approximate offset adjustment value for each switch.
*8. Place unit in the case and turn power on to the unit. Use the fine offset
adjustment to fine tune the desired minimum reading (500 in this example).
Vary the input from the minimum to maximum levels and check the
corresponding readouts. Fine-tune if necessary by readjusting the fine gain
adjustment at the maximum end and the fine offset adjustment at the
minimum end. (In the example, readout is 500 @ 2 mV min. and 1500 @ 18
mV max.) Alternate between minimum and maximum inputs as required
until readout is within desired tolerance at the extremes.9. Set appropriate
decimal point switch (S2 for the example given).
The unit is now ready for installation.
* Steps 7 and 8 are not required in zero-based applications.
5.0 CALIBRATING THE METER
SWITCH NUMBER SPAN VALUE
5
6
140
50
716
86.6
93.3
SWITCH NUMBER OFFSET VALUE
2500
3250
4125
(Using 350 Ohm Dummy Bridge)

E
480 www.redlion.net
EXAMPLE #3 MULTIPLE LOAD-CELL INPUT,
AVERAGE READING
The 120 mA excitation output capability of the PAXLSG allows it to operate
multiple strain gage bridges. In this example, it is used to indicate the quantity
of granular material held in a hopper that is supported by three load cells in a
tripod mounting arrangement. The tare-weight of the empty hopper is about
30% of the full weight, requiring a significant offset for a zero readout when
empty. The PAXLSG is first Voltage-Calibrated (using the known output of the
load cells at the empty and full conditions). Then the unit is installed and fine
trimmed (System Calibration) using known loads.
6.0 APPLICATIONS
EXAMPLE #1 PRESSURE READOUT & SYSTEM
CALIBRATION
This illustration depicts a common application using a PAXLSG with a
strain gage pressure transducer for pressure indication. The gain required to
display 150 Units @ 20 mV is 150/20, or 7.5 Units/mV. Setting the Coarse
Gain Select Switches S8 and S9 ON, gives a gain range of 6.6 + 3.3, or 9.9
Units/mV maximum, which brackets the required gain. The transducer curve
is zero-based (i.e. zero readout at zero input), and can be easily System
Calibrated. A variable pressure input is applied to the transducer with a “Dead-
Weight Tester” and the Fine Offset is adjusted to give a readout of zero with
no pressure applied. Then 150 PSI is applied, the Coarse and Fine Gain
controls are adjusted for a readout of 150. Pressure is removed, zero is checked
and readjusted with the Fine Offset control if needed. Pressure is varied
between zero and maximum, with the Fine Gain and Offset adjustments
retrimmed as needed until the readout is within tolerance.
EXAMPLE #2 THE MODEL PAXLSG AS A MILLIVOLT
METER
The PAXLSG can be used as a scaleable millivolt meter and will accept either
single-ended or differential inputs when connected as shown. Input signals are
referenced to the negative (common) side of the excitation supply (Terminal 3).
Maximum common-mode voltage (for differential input) is 0 to +7 VDC.

E
4811-717-767-6511
MODEL PAXS - STRAIN GAGE INPUT
This is a brief overview of the PAXS. For complete specifications and programming information, see the
PAX Analog Input Panel Meters Bulletin starting on page 378.
5-DIGIT 0.56" RED SUNLIGHT READABLE OR STANDARD
GREEN DISPLAY
LOAD CELL, PRESSURE AND TORQUE BRIDGE INPUTS
DUAL RANGE INPUT:
±
24 mV OR
±
240 mV
SELECTABLE 5 VDC OR 10 VDC BRIDGE EXCITATION
PROGRAMMABLE AUTO-ZERO TRACKING
FOUR SETPOINT ALARM OUTPUTS (W/OPTION CARD)
COMMUNICATION AND BUS CAPABILITIES (W/OPTION CARD)
CRIMSON PROGRAMMING SOFTWARE
PAXS SPECIFICATIONS
SENSOR INPUTS:
CONNECTION TYPE: 4-wire bridge (differential)
2-wire (single-ended)
COMMON MODE RANGE (w.r.t. input common): 0 to +5 VDC
Rejection: 80 dB (DC to 120 Hz)
BRIDGE EXCITATION :
Jumper Selectable: 5 VDC @ 65 mA max., ±2%
10 VDC @ 125 mA max., ±2%
Temperature coefficient (ratio metric): 20 ppm/°C max.
INPUT RANGE ACCURACY*
(18 to 28°C)
ACCURACY*
(0 to 50°C) IMPEDANCE
MAX
CONTINUOUS
OVERLOAD
RESOLUTION
±24 mVDC 0.02% of
reading +3 μV
0.07% of
reading +4 μV100 Mohm 30 V 1 μV
±240 mVDC 0.02% of
reading +30 μV
0.07% of
reading +40 μV100 Mohm 30 V 10 μV
* After 20 minute warm-up. Accuracy is specified in two ways: Accuracy over an 18
to 28°C and 10 to 75% RH environment; and accuracy over a 0 to 50°C and 0 to
85% RH (non-condensing environment). Accuracy over the 0 to 50°C range
includes the temperature coefficient effect of the meter.
C
C
US LISTED
US LISTED
UL
R
IND. CONT. EQ.
51EB

E
482 www.redlion.net
This page intentionally left blank.

4831-717-767-6511
TEMPERATURE
CONTROLLERS
F
The Trusted Source for
Innovative Control
Solutions

F
484 www.redlion.net
QUICK Specs
INDICATION
5 Digit, .48" (12mm) Reflective
and Red Backlight LCD
5 Digit, .48" (12mm) Reflective
and Red Backlight LCD 4 Digit, .56" (14mm) Red LED 4 Digit, .56" (14mm) Red LED
Display
RTD/Thermocouple Meter With
Output Option Card Capability RTD Temperature Indicator 1/8 DIN RTD Temperature
Indicator
1/8 DIN Thermocouple
Temperature Indicator
RTD (CUB5RT)
Pt385, Pt392, Ni672, and Cu427
Thermocouple (CUB5TC)
T, E, J, K, R, S, B, N, and mV
RTD
Pt385, Pt392, Ni672, and Cu427
RTD
Pt385 and Pt392
Thermocouple
T, E, J, K, R, S, B, N, and mV
YesNoNoNo
Single Form C Relay
Dual Sinking No No No
RS232
RS485 No No No
User Input
Min/Max Memory
Custom Units Indicato
Programmable F or C
Annunciator
Programmable Offset,
Peak/Valley Memory,
Custom Units Overlay
Programmable Offset,
Peak/Valley Memory,
Custom Units Overlay
9 to 28 VDC 9 - 26 VDC @ 25 mA
With Backlighting 65 mA 85 to 250 VAC 85 to 250 VAC
39 mm (H) x 75 mm (W) 39 mm (H) x 75 mm (W) 50 mm (H) x 97 mm (W) 50 mm (H) x 97mm (W)
Control
Outputs
Communications
Dimensions
(Height)x (Width)
Other Features/
Options
Input Ranges
Description
CUB5RT/TC CUB4RT PAXLRT PAXLTC
CONTROL
Temperature Controllers
Field Installable Option Card
Power Source
Page 489/501 * Page 521 Page 513
Page Number
*See website for product information.

Page 528 Page 539 Page 540 Page 541
5 Digit, .56" (14mm) Red LED 4 1/2 Digit, .56" (14mm) Red LED
4 1/2 Digit, .56" (14mm)
Standard Green or Sunlight
Readable Red LED,
Adjustable Intensity
2 x 4 Digit,
Main Display .3" (7mm) Red
Sec. Display .2" (5mm)
Green LED
Display
RTD and Thermocouple Meter
With Setpoint Capability
1/8 DIN RTD and Thermocouple
Temperature Indicator 1/8 DIN RTD and Thermocouple
Temperature Indicator 1/16 DIN Temperature Controller
RTD
Pt385, Pt392, Ni672, and Cu427
Thermocouple
T, E, J, K, R, S, B, N, and mV
Thermocouple
T, E, J, K, R, S, B, N, and C
RTD
Pt385, Pt392, Ni672, and Cu427
Direct
10 Ohm, 100 Ohm, and mV
Thermocouple
T, E, J, K, R, S, B, N, C, and mV
RTD
2 or 3 Wire 100 Ohm
(ALPHA = .00385, .00391 and
.00672)
Thermocouple
T, E, J, K, R, S, B, N, and mV
RTD
2 or 3 Wire 100 Ohm
(ALPHA = .00385 and .00391)
Yes No On/Off On/Off, PID
Dual Form C No
Dual Form C
Quad Form A
Quad Sinking
Quad Sourcing
Main Control (Heat/Cool), Cooling
Output, Dual Alarms
(Relay, SSR Drive)
No No
RS232
RS485
Modbus
DeviceNet
Profibus
Ethernet w/ICM8
No
User Input
Min/Max Memory,
Custom Units Overlay
Min/Max Memory,
Integrator/Totalizer,
Custom Units Overlay
Analog Output*,
Min/Max Memory,
Integrator/Totalizer, Linearizer,
Custom Units Overlay
Analog Output
50 to 250 VAC
21.6 to 250 VDC
85 to 250 VAC
11 to 36 VDC
24 VAC
85 to 250 VAC
18 to 36 VDC
24 VAC
85 to 250 VAC
18 to 36 VDC
24 VAC
50 mm (H) x 97mm (W) 50 mm (H) x 97mm (W) 50 mm (H) x 97mm (W) 48 mm (H) x 48mm (W)
Control
Outputs
Communications
Dimensions
(Height)x (Width)
Other Features/
Options
Input Ranges
Description
Field Installable Option Card
Power Source
F
4851-717-767-6511
CONTROL
QUICK Specs
PID CONTROL
PAXLT DP5T PAXT T16
Temperature Controllers
Page Number
*See website for product information.

Page 566 Page 574 Page 583 Page 590
2 x 4 Digit,
Main Display .4" (10mm) Red
Sec. Display .3" (7mm)
Green LED
2 x 4 Digit,
Main Display .4" (10mm) Red
Sec. Display .3" (7mm)
Green LED
2 x 4 Digit,
Main Display .4" (10mm) Red
Sec. Display .3" (7mm)
Green LED
2 x 4 Digit,
Main Display .3" (7mm) Red
Sec. Display .2" (5mm)
Green LED
Display
1/16 DIN Temperature Controller 1/8 DIN Temperature Controller 1/8 DIN Temperature Setpoint
Controller 1/16 DIN Process Controller
Thermocouple
T, E, J, K, R, S, B, N, and mV
RTD
2, 3, or 4 Wire 100 Ohm
(ALPHA = .00385 and .00391)
Thermocouple
T, E, J, K, R, S, B, N, and mV
RTD
2, 3, or 4 Wire 100 Ohm
(ALPHA = .00385 and .00391)
Process Input
0 to 10 VDC or
0 to 20 mA
Process Input
0 to 10 VDC or
0 to 20 mA
On/Off, PID On/Off, PID On/Off, PID On/Off, PID
Main Control (Heat/Cool), Cooling
Output, Dual Alarms
(Relay, SSR Drive, Triac)
Field Replaceable
Main Control (Heat/Cool), Cooling
Output, Dual Alarms
(Relay, SSR Drive, Triac)
Field Replaceable
Main Control (Heat/Cool), Cooling
Output, Dual Alarms
(Relay, SSR Drive, Triac)
Field Replaceable
Main Control (Direct/Reverse),
Secondary Output,
Dual Alarms
RS485 RS485 RS485 No
Heater Current Monitor,
Analog Output,
Remote Setpoint
Heater Current Monitor,
Analog Output,
Remote Setpoint
Analog Output Analog Output
85 to 250 VAC
18 to 36 VDC
24 VAC
115/230 VAC 115/230 VAC
85 to 250 VAC
18 to 36 VDC
24 VAC
48 mm (H) x 48mm (W) 96 mm (H) x 48mm (W) 96 mm (H) x 48mm (W) 48 mm (H) x 48mm (W)
Control
Outputs
Communications
Dimensions
(Height)x (Width)
Other Features/
Options
Input Ranges
Description
Field Installable Option Card
Power Source
F
486 www.redlion.net
QUICK Specs
PID CONTROL
T48 TCU TSC P16
Temperature Controllers
Page Number
*See website for product information.

Page 591 Page 596 Page 604 Page 611
2 x 4 Digit,
Main Display .4" (10mm) Red
Sec. Display .3" (7mm)
Green LED
2 x 4 Digit,
Main Display .4" (10mm) Red
Sec. Display .3" (7mm)
Green LED
2 x 4 Digit,
Main Display .4" (10mm) Red
Sec. Display .3" (7mm)
Green LED
2 x 4 Digit,
Main Display .4" (10mm) Red
Sec. Display .3" (7mm)
Green LED
Display
1/16 DIN Process Controller 1/8 DIN Process Controller 1/8 DIN Process Setpoint
Controller
1/16 DIN Temperature Limit
Alarm
Process Input
0 to 10 VDC or
0 to 20 mA
Process Input
0 to 10 VDC or
0 to 20 mA
Thermocouple
T, E, J, K, R, S, B, N, and mV
RTD
2, or 3 Wire 100 Ohm
(ALPHA = .00385 and .00391)
On/Off, PID On/Off, PID On/Off, PID On/Off
Main Control (Direct/Reverse),
Secondary Output,
Dual Alarms
(Relay Only)
Main Control (Direct/Reverse),
Secondary Output, Dual Alarms
(Relay, SSR Drive, Triac)
Field Replaceable
Main Control (Direct/Reverse),
Secondary Output, Dual Alarms
(Relay, SSR Drive, Triac)
Field Replaceable
Limit Alarm
Relay
Alarm Output
Single or Dual Relay
RS485 RS485 RS485 No
Dual Setpoint,
Remote Setpoint,
Analog Output
Motorized Valve Positioner,
Analog Output,
Remote Setpoint
Analog Output No
85 to 250 VAC
18 to 36 VDC
24 VAC
115/230 VAC 115/230 VAC
85 to 250 VAC
18 to 36 VDC
24 VAC
48 mm (H) x 48mm (W) 96 mm (H) x 48mm (W) 96 mm (H) x 48mm (W) 48 mm (H) x 48mm (W)
Control
Outputs
Communications
Dimensions
(Height)x (Width)
Other Features/
Options
Input Ranges
Description
Field Installable Option Card
Power Source
F
4871-717-767-6511
QUICK Specs
PID CONTROL
P48 PCU PSC TLA
Page Number
*See website for product information.
CONTROL
Temperature Controllers

F
488 www.redlion.net
REPLACEMENT Guide
WHAT YOU’RE USING NOW CURRENT PRODUCT
PAXLTCAPLTC
QDisplay: 4 Digit, .56" (14 mm)
Red LED
QPower Source: 85 to 250 VAC
QMeasurement: Thermocouple
QDisplay: 4 Digit, .56" (14 mm)
Red LED
QConstruction: Metal Front Bezel
QPower Source: 115/230 VAC
QMeasurement: Thermocouple
PAXTIMR
QDisplay: 6 Digit, .56" (14 mm)
Red LED
QPower Source: 85 to 250 VAC
QMeasurement: RTD
QRequires Appropriate Option Card
QDisplay: 4 Digit, .56" (14 mm)
Red LED
QConstruction: Metal Front Bezel
QPower Source: 115/230 VAC
QMeasurement: RTD
MODEL NUMBER FEATURES MODEL NUMBER FEATURES
PAXTIMT
QDisplay: 6 Digit, .56" (14 mm)
Red LED
QPower Source: 85 to 250 VAC
QMeasurement: Thermocouple
QRequires Appropriate Option Card
QDisplay: 4 Digit, .56" (14 mm)
Red LED
QConstruction: Metal Front Bezel
QPower Source: 115/230 VAC
QMeasurement: Thermocouple
CUB5TCCUB4TC
QDisplay: 5 Digit, .48" (12 mm)
Reflective, Green and Red Backlight
LCD
QPower Source: 9 to 28 VDC
QMeasurement: Thermocouple
QDisplay: 5 Digit, .48" (12 mm)
Reflective and Red Backlight LCD
QPower Source: 9 to 26 VDC
QMeasurement: Thermocouple
CUB5RTCUB4RT
QDisplay: 5 Digit, .48" (12 mm)
Reflective, Green and Red Backlight
LCD
QPower Source: 9 to 28 VDC
QMeasurement: RTD
QDisplay: 5 Digit, .48" (12 mm)
Reflective and Red Backlight LCD
QPower Source: 9 to 26 VDC
QMeasurement: RTD
Note: Refer to the current product literature, as some differences may exist.

F
4891-717-767-6511
zCONFORMS TO ITS-90 TEMPERATURE STANDARD
zCOLD JUNCTION COMPENSATION (Enable/Disable)
zMINIMUM AND MAXIMUM DISPLAY CAPTURE
zLCD, REFLECTIVE OR GREEN/RED LED BACKLIGHTING
z0.48" (12.2 mm) HIGH DIGITS
zOPTIONAL SETPOINT OUTPUT MODULES
zOPTIONAL SERIAL COMMUNICATION MODULES (RS232 or RS485)
zOPERATES FROM 9 TO 28 VDC POWER SOURCE
zFRONT PANEL OR CRIMSON PROGRAMMABLE
zDISPLAY COLOR CHANGE CAPABILITY AT SETPOINT OUTPUT
zNEMA 4X/IP65 SEALED FRONT BEZEL
MODEL CUB5TC - MINIATURE ELECTRONIC 5-DIGIT
THERMOCOUPLE METER
GENERAL DESCRIPTION
The CUB5 provides the user the ultimate in flexibility, from its complete user
programming to the optional setpoint control and communication capability.
The CUB5TC accepts a thermocouple input and provides a temperature display
in Celcius or Farenheit. The meter also features minimum and maximum
display capture, display offset, °F or °C indicator, and programmable user input.
The display can be toggled either manually or automatically between the
selected displays.
The CUB5 display has 0.48" (12.2 mm) high digits. The LCD is available in
two versions, reflective and red/green backlight. The backlight version is user
selectable for the desired color and also has variable display intensity.
The capability of the CUB5 can be easily expanded with the addition of
option modules. Setpoint capability is field installable with the addition of the
setpoint output modules. Serial communications capability for RS232 or RS485
is added with a serial option module.
The CUB5 can be powered from an optional Red Lion Micro-Line/Sensor
Power Supply (MLPS1000), which attaches directly to the back of a CUB5. The
MLPS1 is powered from 85 to 250 VAC and provides up to 400 mA to drive the
unit and sensors.
SAFETY SUMMARY
All safety related regulations, local codes and instructions that appear in this
literature or on equipment must be observed to ensure personal safety and to
prevent damage to either the instrument or equipment connected to it. If
equipment is used in a manner not specified by the manufacturer, the protection
provided by the equipment may be impaired.
Do not use this meter to directly command motors, valves, or other actuators
not equipped with safeguards. To do so can be potentially harmful to persons or
equipment in the event of a fault to the meter.
CAUTION: Risk of Danger.
Read complete instructions prior to
installationand operation of the unit.
CAUTION: Risk of electric shock.
DIMENSIONS In inches (mm)
Note: Recommended minimum clearance (behind the panel) for mounting clip installation is 2.15" (54.6) H x 3.00" (76.2) W.
C
C
US LISTED
US LISTED
UL
R
IND. CONT. EQ.
51EB
zTHERMOCOUPLE INPUTS
Thermocouple types T, E, J, K, R, S, B, N, or mV
zPROGRAMMABLE TEMPERATURE OFFSET
zSELECTABLE °F or °C WITH 1 or 0.1 DEGREE RESOLUTION
z°F OR °C DISPLAY ANNUNCIATORS

F
490 www.redlion.net
1. DISPLAY: 5 digit LCD 0.48" (12.2 mm) high digits
CUB5TCR0: Reflective LCD with full viewing angle
CUB5TCB0: Transmissive LCD with selectable red or green LED backlight,
viewing angle optimized. Display color change capability with output state
when using an output module.
2. POWER: Input voltage range is +9 to +28 VDC with short circuit and input
polarity protection. Must use an RLC model MLPS1 or a NEC Class 2 or
SELV rated power supply.
3. READOUT:
Resolution: 1 or 0.1 degrees
Scale: °F or °C
Offset Range: -999 to 9999 display units
4. THERMOCOUPLE INPUTS:
Isolation: TC+ and TC- terminals are not electrically isolated from the power
supply or optional comms cards.
Response Time: 500 msec.
Open Sensor Display: OPEN
Overrange/Underrange Input: OLOL/ULUL
Overrange/Underrange Display : “.....”/“-.....”
Maximum Input Voltage: 30 VDC, TC+ to TC-
Maximum Input Voltage TC-: 3 VDC max. with respect to common
*After 20 min. warm-up. Accuracy is specified in two ways: Accuracy at
23°C and 15 to 75% RH environment; and Accuracy over a -35 to 75°C and 0
to 85% RH (non condensing) environment. Accuracy specified over the -35 to
75°C operating range includes meter tempco and cold junction tracking effects.
The specification includes the A/D conversion errors, linearization conformity,
and thermocouple cold junction compensation. Total system accuracy is the sum
of meter and probe errors. Accuracy may be improved by field calibrating the
meter readout at the temperature of interest.
5. USER INPUT (USR): Programmable input. Connect terminal to common
(USR COMM) to activate function. Internal 10KΩpull-up resistor to +9 to
28 VDC.
Threshold Levels: VIL = 1.0 V max; VIH = 2.4 V min; VMAX = 28 VDC
Response Time: 5 msec typ.; 50 msec debounce (activation and release)
6. CERTIFICATIONS AND COMPLIANCES:
SAFETY
UL Recognized Component, File #E179259, UL61010A-1, CSA 22.2 No. 61010-1
Recognized to U.S. and Canadian requirements under the Component
Recognition Program of Underwriters Laboratories, Inc.
UL Listed, File # E137808, UL508, CSA C22.2 No. 14-M95
LISTED by Und. Lab. Inc. to U.S. and Canadian safety standards
Type 4X Indoor Enclosure rating (Face only), UL50
IECEE CB Scheme Test Certificate #US/9257A/UL
CB Scheme Test Report #E179259-V01-S02
Issued by Underwriters Laboratories, Inc.IEC 61010-1, EN 61010-1:
Safety requirements for electrical equipment for measurement, control,
and laboratory use, Part 1.
IP65 Enclosure rating (Face only), IEC 529
ELECTROMAGNETIC COMPATIBILITY
Emissions and Immunity to EN 61326: Electrical Equipment for
Measurement, Control and Laboratory use.
Note:
1. Criterion A: Normal operation within specified limits.
Refer to EMC Installation Guidelines for additional information.
7. MEMORY: Nonvolatile E2PROM memory retains all programming
parameters and max/min values when power is removed.
GENERAL METER SPECIFICATIONS
ORDERING INFORMATION
TYPE MODEL NO. DESCRIPTION PART NUMBER
CUB5 CUB5TC CUB5TCB0
CUB5TCR0
Optional Plug-in Cards
CUB5SNK
CUB5RLY
CUB5USB
CUB5COM
USB Programming Card for CUB5 Products
RS232 Serial Communications Card
RS485 Serial Communications Card
Dual Sinking Output Card
Single Relay Output Card
CUB5USB0
CUB5COM2
CUB5COM1
CUB5SNK0
CUB5RLY0
Accessories
CBLUSB
SFCRD
CBLPROG
CBPRO
MLPS1
USB Programming Cable
Crimson 2 PC Configuration Software for Windows 98, ME, 2000, XP 1
RS232 Programming Cable (DB9-RJ11)
RS485 Programming Cable (DB9-RJ11)
Micro-Line Power Supply, 85 to 250 VAC
CBLUSB00
SFCRD200
CBLPROG0
CBPRO007
MLPS1000
Thermocouple Meter with Backlight Display
Thermocouple Meter with Reflective Display
MODEL
NO. DISPLAY COLOR
INPUT CURRENT
@ 9 VDC WITHOUT
CUB5RLY0
INPUT CURRENT
@ 9 VDC WITH
CUB5RLY0
CUB5TCR0 --- 10 mA 40 mA
CUB5TCB0 Red (max intensity) 85 mA 115 mA
CUB5TCB0 Green (max intensity) 95 mA 125 mA
Class AEN 55011Emissions
Emissions:
30 A/m
3 V/rms
Criterion A
Criterion A
EN 61000-4-8
EN 61000-4-6RF conducted interference
1 kV L-L,
Criterion AEN 61000-4-5Surge
1 kV signal
2 kV power
Criterion AEN 61000-4-4Fast transients (burst)
2 kV L&N-E power
10 V/m
Criterion AEN 61000-4-3Electromagnetic RF fields
8 kV air discharge
4 kV contact discharge
Criterion AEN 61000-4-2Electrostatic discharge
Immunity to Industrial Locations:
Power frequency magnetic fields
1 Crimson 2 software is a free download from http://www.redlion.net/
ACCURACY
@ -35 to 75°C
±°C
0.08 mV
5.8
8.1
4.9
42.6<540°C
15.0>540°C
15.0
no
standard
no
standard
0.02 mV-10.00 to 65.00mV
(+) brown
(-) blue
(+) yellow
(-) red
2.3
-200 to 1372°C
-328 to 2502°F
K
(+) orange
(-) blue
(+) orange
(-) red
2.8
-200 to 1300°C
-328 to 2372°F
N
(+) brown
(-) blue
(+) purple
(-) red
2.7
-200 to 871°C
-328 to 1600°F
E
no
standard
no
standard
9.1<540°C
4.5>540°C
200 to 1820°C
392 to 3308°F
B
(+) white
(-) blue
no
standard
4.5
-50 to 1768°C
-58 to 3214°F
S
(+) white
(-) blue
no
standard
4.5
-50 to 1768°C
-58 to 3214°F
R
(+) yellow
(-) blue
(+) white
(-) red
1.9
-200 to 760°C
-328 to 1400°F
J
(+) white
(-) blue
(+) blue
(-) red
2.3
-200 to 400°C
-328 to 752°F
T
BS 1843ANSI
15.0
4.3
5.8
ACCURACY
@ 23°C
±°C
RANGETC TYPE
WIRE COLOR

F
4911-717-767-6511
8. CONNECTIONS: Wire clamping screw terminals
Wire Strip Length: 0.3" (7.5 mm)
Wire Gage: 30-14 AWG copper wire
Torque: 5 inch-lbs (0.565 N-m) max.
9. ENVIRONMENTAL CONDITIONS:
Operating Temperature Range for CUB5TCR0: -35 to 75°C
Operating Temperature Range for CUB5TCB0 depends on display color
and intensity level as per below:
Storage Temperature: -35 to 85°C
Operating and Storage Humidity: 0 to 85% max. relative humidity (non-
condensing)
Altitude: Up to 2000 meters
10. CONSTRUCTION: This unit is rated for NEMA 4X/IP65 requirements for
indoor use. Installation Category I, Pollution Degree 2. High impact plastic
case with clear viewing window. Panel gasket and mounting clip included.
11. WEIGHT: 3.2 oz (100 g)
ADDING OPTION CARDS
The CUB5 meters can be fitted with optional output cards and/or serial
communications cards. The details for the plug-in cards can be reviewed in the
specification section below. The plug-in cards, that are sold separately, can be
installed initially or at a later date.
WARNING: Disconnect all power to the unit before
installing Plug-in card.
SINGLE RELAY CARD
Type: Single FORM-C relay
Isolation To Sensor & User Input Commons: 1400 Vrms for 1 min.
Working Voltage: 150 Vrms
Contact Rating: 1 amp @ 30 VDC resistive; 0.3 amp @ 125 VAC resistive
Life Expectancy: 100,000 minimum operations
Response Time:
Turn On Time: 4 msec max.
Turn Off Time: 4 msec max.
DUAL SINKING OUTPUT CARD
Type: Non-isolated switched DC, N Channel open drain MOSFET
Current Rating: 100 mA max.
VDS ON: 0.7 V @ 100 mA
VDS MAX: 30 VDC
Offstate Leakage Current: 0.5 mA max.
RS485 SERIAL COMMUNICATIONS CARD
Type: RS485 multi-point balanced interface (non-isolated)
Note: Non-grounded (isolated) thermocouple probes must be used when
multiple units are connected in an RS485 network, or measurement
errors will occur.
Baud Rate: 300 to 38.4k
Data Format: 7/8 bits; odd, even, or no parity
Bus Address: 0 to 99; max 32 meters per line
Transmit Delay: Selectable (refer to CUB5COM bulletin)
RS232 SERIAL COMMUNICATIONS CARD
Type: RS232 half duplex (non-isolated)
Baud Rate: 300 to 38.4k
Data Format: 7/8 bits; odd, even, or no parity
OPTIONAL PLUG-IN CARDS
1.0 INSTALLING THE METER
INSTALLATION
The meter meets NEMA 4X/IP65 requirements when properly installed. The
unit is intended to be mounted into an enclosed panel. Prepare the panel cutout
to the dimensions shown. Remove the panel latch from the
unit. Slide the panel gasket over the rear of the unit to
the back of the bezel. The unit should be installed
fully assembled. Insert the unit into the panel
cutout.
While holding the unit in place, push the panel latch over the rear of the unit
so that the tabs of the panel latch engage in the slots on the case. The panel latch
should be engaged in the farthest forward slot possible. To achieve a proper seal,
tighten the latch screws evenly until the unit is snug in the panel (Torque to
approx. 28 to 36 in-oz [0.202 to 0.26 N-m]). Do not over-tighten the screws.
INSTALLATION ENVIRONMENT
The unit should be installed in a location that does not exceed the operating
temperature and provides good air circulation. Placing the unit near devices that
generate excessive heat should be avoided.
The bezel should only be cleaned with a soft cloth and neutral soap product.
Do NOT use solvents. Continuous exposure to direct sunlight may accelerate the
aging process of the bezel.
Do not use tools of any kind (screwdrivers, pens, pencils, etc.) to operate the
keypad of the unit.
TEMPERATURE
1 & 2 -35 to 75°C
3-35 to 70°C
4-35 to 60°C
5-35 to 50°C
1 & 2 -35 to 75°C
3-35 to 65°C
5
4
-35 to 35°C
-35 to 50°C
INTENSITY LEVEL
Green Display
Red Display

F
492 www.redlion.net
WIRING OVERVIEW
Electrical connections are made via screw-clamp terminals located on the
back of the meter. All conductors should conform to the meter’s voltage and
current ratings. All cabling should conform to appropriate standards of good
installation, local codes and regulations. It is recommended that the power
supplied to the meter (DC or AC) be protected by a fuse or circuit breaker.
Strip the wire, leaving approximately 0.3" (7.5 mm) bare lead exposed
(stranded wires should be tinned with solder.) Insert the lead under the correct
screw-clamp terminal and tighten until the wire is secure. (Pull wire to verify
tightness.) Each terminal can accept up to one #14 AWG (2.55 mm) wire, two
#18 AWG (1.02 mm), or four #20 AWG (0.61 mm).
EMC INSTALLATION GUIDELINES
Although this meter is designed with a high degree of immunity to Electro-
Magnetic Interference (EMI), proper installation and wiring methods must be
followed to ensure compatibility in each application. The type of the electrical
noise, source or coupling method into the meter may be different for various
installations. The meter becomes more immune to EMI with fewer I/O
connections. Cable length, routing, and shield termination are very important
and can mean the difference between a successful or troublesome installation.
Listed below are some EMC guidelines for successful installation in an
industrial environment.
1. The meter should be mounted in a metal enclosure, which is properly
connected to protective earth.
2. Use shielded (screened) cables for all Signal and Control inputs. The shield
(screen) pigtail connection should be made as short as possible. The
connection point for the shield depends somewhat upon the application.
Listed below are the recommended methods of connecting the shield, in order
of their effectiveness.
a. Connect the shield only at the panel where the unit is mounted to earth
ground (protective earth).
b. Connect the shield to earth ground at both ends of the cable, usually when
the noise source frequency is above 1 MHz.
c. Connect the shield to common of the meter and leave the other end of the
shield unconnected and insulated from earth ground.
3. Never run Signal or Control cables in the same conduit or raceway with AC
power lines, conductors feeding motors, solenoids, SCR controls, and
heaters, etc. The cables should be ran in metal conduit that is properly
grounded. This is especially useful in applications where cable runs are long
and portable two-way radios are used in close proximity or if the installation
is near a commercial radio transmitter.
4. Signal or Control cables within an enclosure should be routed as far as possible
from contactors, control relays, transformers, and other noisy components.
5. In extremely high EMI environments, the use of external EMI suppression
devices, such as ferrite suppression cores, is effective. Install them on Signal
and Control cables as close to the unit as possible. Loop the cable through the
core several times or use multiple cores on each cable for additional protection.
Install line filters on the power input cable to the unit to suppress power line
interference. Install them near the power entry point of the enclosure. The
following EMI suppression devices (or equivalent) are recommended:
Ferrite Suppression Cores for signal and control cables:
Fair-Rite # 0443167251 (RLC# FCOR0000)
TDK # ZCAT3035-1330A
Steward # 28B2029-0A0
Line Filters for input power cables:
Schaffner # FN610-1/07 (RLC# LFIL0000)
Schaffner # FN670-1.8/07
Corcom # 1 VR3
Note: Reference manufacturer’s instructions when installing a line filter.
6. Long cable runs are more susceptible to EMI pickup than short cable runs.
Therefore, keep cable runs as short as possible.
7. Switching of inductive loads produces high EMI. Use of snubbers across
inductive loads suppresses EMI.
Snubber: RLC# SNUB0000.
3.0 WIRING THE METER
2.0 INSTALLING PLUG-INCARDS
WARNING: Exposed line voltage exists on the circuit boards.
Remove all power to the meter and load circuits before
accessing inside of the meter.
CAUTION: The Plug-in cards and main circuit board contain static
sensitive components. Before handling the cards, discharge
static charges from your body by touching a grounded bare
metal object. Ideally, handle the cards at a static controlled
clean workstation. Also, only handle the cards by the edges.
Dirt, oil or other contaminants that may contact the cards can
adversely affect circuit operation.
REMOVING THE REAR COVER
To remove the rear cover, locate the cover locking tab below the 2nd and 3rd
input terminals. To release the tab, insert a small, flat blade screwdriver between
the tab and the plastic wall below the terminals. Inserting the screwdriver will
provide enough pressure to release the tab locks. To replace the cover, align the
cover with the input terminals and press down until the cover snaps into place.
The Plug-in cards are separately purchased option cards that perform specific
functions. The cards plug into the main circuit board of the meter.
Comms Card
Setpoint Card

F
4931-717-767-6511
3.1 POWER WIRING
DC Power
+9 to +28 VDC: +VDC
Power Common: -VDC
3.2 USER INPUT WIRING
Sinking Logic
USR COMM
USR
The user input of the meter is
internally pulled up to +9 to +28 V
with 10 K resistance. The input is
active when it is pulled low (<0 .7 V).
Connect external switching device between the
User Input terminal and User Input Common.
}
3.3 INPUT WIRING
3.4 SETPOINT (OUTPUT) WIRING
3.5 SERIAL COMMUNICATION WIRING
SINGLE SETPOINT RELAY PLUG-IN CARD
SERIAL COMMUNICATIONS PLUG-IN CARD RJ11 CONNECTOR PIN OUTS
ELECTRICAL CONNECTIONS
DUAL SETPOINT N-FET OPEN DRAIN PLUG-IN CARD
Thermocouple CAUTION: Power input common and sensor input common are NOT isolated
from user input common. In order to preserve the safety of the meter
application, the power input common and the sensor input common must
be suitably isolated from hazardous live earth referenced voltages; or
input common must be at protective earth ground potential. If not, hazardous
live voltage may be present at the User Inputs and User Input Common
terminals. Appropriate considerations must then be given to the potential of
the user input common with respect to earth common; and the common of
the isolated plug-in cards with respect to input common.
ELECTRICAL CONNECTIONS
Output Common is not isolated from DC Power Common. Load must
be wired between OSNK terminal and V+ of the load supply.

F
494 www.redlion.net
4.0 REVIEWING THE FRONT BUTTONS AND DISPLAY
PROGRAMMING MODE ENTRY (SEL BUTTON)
It is recommended that all programming changes be made off line, or before
installation. The meter normally operates in the Display Mode. No parameters
can be programmed in this mode. The Programming Mode is entered by
pressing and holding the SEL button. If it is not accessible then it is locked by
either a security code, or a hardware lock.
MODULE ENTRY (SEL & RST BUTTONS)
The Programming Menu is organized into separate modules. These modules
group together parameters that are related in function. The display will alternate
between Pro and the present module. The RST button is used to select the desired
module. The displayed module is entered by pressing the SEL button.
MODULE MENU (SEL BUTTON)
Each module has a separate module menu (which is shown at the start of each
module discussion). The SEL button is pressed to advance to a particular
parameter to be changed, without changing the programming of preceding
parameters. After completing a module, the display will return to Pro NO.
Programming may continue by accessing additional modules.
SELECTION / VALUE ENTRY
For each parameter, the display alternates between the present parameter and
the selections/value for that parameter. The RST button is used to move through
the selections/values for that parameter. Pressing the SEL button, stores and
activates the displayed selection/value. This also advances the meter to the next
parameter.
For numeric values, press the RST button to access the value. The right hand
most digit will begin to flash. Pressing the RST button again increments the
digit by one or the user can hold the RST button and the digit will automatically
scroll. The SEL button will advance to the next digit. Pressing and holding the
SEL button will enter the value and move to the next parameter.
PROGRAMMING MODE EXIT (SEL BUTTON)
The Programming Mode is exited by pressing the SEL button with Pro NO
displayed. This will commit any stored parameter changes to memory and
return the meter to the Display Mode. (If power loss occurs before returning to
the Display Mode, verify recent parameter changes.)
PROGRAMMING TIPS
It is recommended to start with Module 1 and proceed through each module
in sequence. When programming is complete, it is recommended to record the
parameter programming and lock out parameter programming with the user
input or programming security code.
FACTORY SETTINGS
Factory Settings may be completely restored in Module 2. This is useful
when encountering programming problems.
Pressing both the SEL and the RST button on power-up will also load the
factory settings and display rESEt. This allows operation in the event of a
memory failure or corrupted data.
ALTERNATING SELECTION DISPLAY
In the explanation of the modules, the following dual display with arrows will
appear. This is used to illustrate the display alternating between the parameter
on top and the parameter’s Factory Setting on the bottom. In most cases,
selections and values for the parameter will be listed on the right.
5.0 PROGRAMMING THE METER
OVERVIEW
PROGRAMMING MENU
Indicates Program Mode Alternating Display
Factory Settings are shown.
Parameter
Selection/Value
BUTTON DISPLAY MODE OPERATION ENTERING PROGRAM MODE PROGRAMMING MODE OPERATION
SEL Index display through enabled values Press and hold for 2 seconds to activate Store selected parameter and index to next parameter
RST Resets values (MIN / MAX) or outputs Advances through the program menu
Increments selected parameter value or selection
OPERATING MODE DISPLAY DESIGNATORS
MAX - Maximum display capture value
MIN - Minimum display capture value
“1” - To the right of the display indicates setpoint 1 output activated.
“2” - To the right of the display indicates setpoint 2 output activated.
Pressing the SEL button toggles the meter through the selected displays. If display scroll is enabled, the display will toggle automatically every four seconds between
the enabled display values.
ª
«
N0
USrIN

F
4951-717-767-6511
5.1 MODULE 1 - SIGNAL INPUT PARAMETERS (1-INP)
PARAMETER MENU
ª
«
tc-J
tYPE
THERMOCOUPLE TYPE
ª
«
0
dECPt 0.00
DISPLAY DECIMAL POINT
Select the decimal point location for the desired display resolution. This
selection applies for the Input, MAX and MIN displays. This parameter does
not appear if tYPE = VOLt or for types R, S or B thermocouples which have a
fixed 1 degree resolution.
ª
«
1
FILtr
FILTER SETTING
If the displayed temperature is difficult to read due to small process
variations or noise, increased levels of filtering will help to stabilize the display.
Software filtering effectively combines a fraction of the current input reading
with a fraction of the previous displayed reading to generate the new display.
0,1 2 3
ª
«
10
bANd FILTER BAND
The filter will adapt to variations in the input signal. When the variation
exceeds the input filter band value, the filter disengages. When the variation
becomes less than the band value, the filter engages again. This allows for a
stable readout, but permits the display to settle rapidly after a large process
change. The value of the band is in display units, independent of the Display
Decimal Point position. A band setting of ‘0’ keeps the filter permanently
engaged at the filter level selected above.
00 to 199 display units
Select the thermocouple type used for the application. The appropriate curve
will be automatically loaded for the selected type.
Selecting VOLt displays the millivolt input signal with 10 μV resolution.
ª
«
°F
SCALE TEMPERATURE SCALE
Select the temperature scale. This selection applies for the Input, MAX and
MIN displays. This parameter does not appear if tYPE = VOLt.
°C°F
R
tc-r
SELECTION TC TYPETC TYPESELECTION
VOLt
tc-n N
K
tc-b
tc-S
tc-K
B
S
J
tc-j
E
tc-E
T
tc-t
ª
«
0
OFSEt DISPLAY OFFSET VALUE
The temperature display can be corrected with an offset value. This can be
used to compensate for probe errors, errors due to variances in probe placement
or adjusting the readout to a reference thermometer.
-999 to 9999
This parameter enables or disables internal cold junction compensation. For
most applications, cold junction compensation should be enabled (yES). This
parameter does not appear if tYPE = VOLt.
COLD JUNCTION COMPENSATION
NOyES
ª
«
yES
CJC
USER INPUT FUNCTION
ª
«
NO
USrIN
Setpoint 1 and 2 Reset
Setpoint 1 Reset
Setpoint 2 Reset
Print and Reset
Reset both setpoint 1 and 2 outputs.
Resets setpoint 1 output.
Resets setpoint 2 output.
Same as Print Request followed by a
momentary reset of the assigned value(s).
rSt12
rSt-1
rSt-2
P-r5t
Print Request
Serial transmit of the active parameters
selected in the Print Options menu
(Module 5).
Print
Select the value(s) to which the User Input Function is assigned. The User
Input Assignment only applies if a selection of reset, display hold, or print and
reset is selected in the User Input Function menu.
USER INPUT ASSIGNMENT
ª
«
dSP
U-ASN
Filter values represent no filtering (0), up to heavy filtering (3). A value of 1
for the filter uses 1/4 of the new input and 3/4 of the previous display to
generate the new display. A filter value of 2 uses 1/8 new and 7/8 previous. A
filter value of 3 uses 1/16 new and 15/16 previous.
dSP
HI-LO
LO
HI
MODE
Reset (Edge triggered)
Program Mode Lock-out
No Function
DESCRIPTIONDISPLAY
Display Select
(Edge Triggered) Advance once for each activation.
d-SEL
Backlight Color
(Edge Triggered)
Change backlight color with each
activation (backlight version only).
COLOr
Display Intensity Level
(Edge Triggered)
Increase intensity one level for each
activation (backlight version only).
d-LEV
Display Hold
Holds the assigned display, but all other
meter functions continue as long as
activated (maintained action).
Resets the assigned value(s) to the
current input value.
rESEt
d-HLd
See Programming Mode Access chart
(Module 3).
P-Loc
User Input disabled.
NO

F
496 www.redlion.net
5.2 MODULE 2 - SECONDARY FUNCTION PARAMETERS (2-SEC)
PARAMETER MENU
MIN DISPLAY ENABLE
YESNO
ª
«
2.0
HI-t
ª
«
NO
LO-En
ª
«
NO
FCS
MAX CAPTURE DELAY TIME
When the Input Display is above the present MAX value for the entered
delay time, the meter will capture that display value as the new MAX reading.
A delay time helps to avoid false captures of sudden short spikes.
ª
«
2.0
LO-t
MIN CAPTURE DELAY TIME
When the Input Display is below the present MIN value for the entered delay
time, the meter will capture that display value as the new MIN reading. A delay
time helps to avoid false captures of sudden short spikes.
0.0 to 999.9 sec.
ª
«
NO
HI-En
MAX DISPLAY ENABLE
0.0 to 999.9 sec.
Select YES to perform either of the Factory Service Operations shown below.
FACTORY SERVICE OPERATIONS
yESNO
YESNO
Enables the Maximum Display Capture capability.
Enables the Minimum Display Capture capability.
The CUB5TC uses stored voltage calibration and cold
junction temperature values to provide accurate
temperature and voltage measurements. Over time, the
electrical characteristics of the components inside the
meter could slowly change. The result is that the stored
calibration values may no longer accurately define the input circuit. For most
applications, recalibration every 1 to 2 years should be sufficient.
Calibration of the CUB5TC involves a voltage calibration and a cold
junction calibration. It is recommended that both calibrations be performed.
The voltage calibration MUST precede the cold junction calibration. Allow 30
minute warm up before performing any calibration related procedure. The
following procedures should be performed at an ambient temperature of 15 to
35 °C (59 to 95 °F).
Calibration should only be performed by individuals experienced in
calibrating electronic equipment.
CAUTION: The accuracy of the calibration equipment will directly affect the
accuracy of the CUB5TC.
Input Voltage Calibration
1. Connect a precision DC voltage source with an accuracy of 0.01% or better
to the TC+ (positive) and the TC- (negative) terminals of the CUB5TC. Set
the output of the voltage source to zero.
2. With the display at CodE 48, press and hold the SEL button for 2 seconds. Unit
will display CAL NO.
3. Press the RST button to select INP.
4. Press the SEL button. Display reads 0.0u.
5. With the voltage source set to zero, press SEL. Display reads CALC for about
eight seconds.
6. When display reads 60.0u, apply 60.000 mV input signal. Press SEL. Display
reads CALC for about eight seconds.
7. When display reads CAL NO, press SEL twice to exit Module 2 and return to
the normal display mode.
8. Proceed to Cold Junction Calibration.
Cold Junction Calibration
1. Install all option cards needed for your application and the rear cover,
or invalid results will occur.
2. The ambient temperature must be within 20°C to 30°C.
3. Connect a thermocouple (types T, E, J, K, or N only) with an accuracy of 1°C
or better to the meter.
4. Enter programming mode and verify the following settings in Module 1:
tYPE = thermocouple type connected to the unit
CJC = YES; SCALE = °C; dECPt = 0.0; OFSEt = 0
5. Place the thermocouple in close thermal contact to a reference thermometer
probe. (Use a reference thermometer with an accuracy of 0.25°C or better.)
The two probes should be shielded from air movement and allowed sufficient
time to equalize in temperature. (A calibration bath of known temperature
could be used in place of the thermometer.)
6. Compare the unit display with the reference temperature indicator (or
calibration bath). If a difference of more than ±1.0 °C exists, note the
difference (CJ error) and continue with cold junction calibration.
CJ Error = Reference Temperature - Unit Display.
7. Enter programming mode. Step through Module 2 to the Service Access
Code parameter and select CodE 48. Press and hold the SEL button until the
unit displays CAL NO. Press the RST button to select CJC.
8. Press SEL. Display reads CJC followed by the current cold junction value.
Calculate a new cold junction value as follows:
New cold junction = Current cold junction + CJ Error (noted above)
9. Press RST and set the display to the new cold junction value. Press and hold
SEL. Display reads CALC for about four seconds and then returns to CAL NO.
10. Press SEL twice to exit calibration and return to the normal display mode.
Verify the input reading is correct. If not, repeat steps 6 through 10.
CALIBRATION
ª
«
48
CodE
RESTORE FACTORY DEFAULT SETTINGS
Entering Code 66 will overwrite all user settings with
the factory settings. The meter will display rESEt and then
return to CodE 00. Press SEL button to exit the module.
Pressing both the SEL and the RST button on power-up
will also load the factory settings and display rESEt. This allows operation in
the event of a memory failure or corruted data.
ª
«
66
CodE

F
4971-717-767-6511
The Security Code determines the programming mode and the accessibility
of programming parameters. This code can be used along with the Program
Mode Lock-out (P-Loc) in the User Input Function parameter (Module 1).
Two programming modes are available. Full Programming mode allows all
parameters to be viewed and modified. Quick Programming mode permits only
the Setpoint values to be modified, but allows direct access to these values
without having to enter Full Programming mode.
Programming a Security Code other than 0, requires this code to be entered
at the CodE prompt in order to access Full Programming mode. Depending on the
code value, Quick Programming may be accessible before the CodE prompt
appears (see chart).
PROGRAMMING SECURITY CODE
000 to 999
USER INPUT
FUNCTION
USER INPUT
STATE
SECURITY
CODE
MODE WHEN “SEL”
BUTTON IS PRESSED
FULL PROGRAMMING
MODE ACCESS
0Full Programming Immediate Access
not P-Loc ______ 1-99 Quick Programming
100-999 CodE prompt With correct code entry
at CodE prompt *
0Programming Lock No Access
Active 1-99 Quick Programming No Access
P-Loc
100-999 CodE prompt With correct code entry
at CodE prompt *
Not Active 0-999 Full Programming Immediate Access
* Entering Code 222 allows access regardless of security code.
5.3 MODULE 3 - DISPLAY AND FRONT PANEL BUTTON
PARAMETERS (3-dSP)
PARAMETER MENU
The yES selection allows the SEL button to toggle through the enabled
displays.
FRONT PANEL DISPLAY SELECT ENABLE (SEL)
This selection allows the RST button to reset the selected value(s).
FRONT PANEL RESET ENABLE (RST)
The yES selection allows the display to automatically scroll through the
enabled displays. The scroll rate is every 4 seconds.
DISPLAY SCROLL ENABLE
NOyES
dSPNO
HI
LO
HI-LO
NOyES
Enter the desired display color, red or green. This parameter is active for
backlight units only.
DISPLAY COLOR (BACKLIGHT UNIT ONLY)
6rnrEd
Enter the desired Display Intensity Level (1-5). The display will actively dim
or brighten as levels are changed. This parameter is active for backlight units only.
DISPLAY INTENSITY LEVEL (BACKLIGHT UNIT ONLY)
1 to 5
ª
«
1
dSP-t
ª
«
yES
SEL
ª
«
dSP
rSt
ª
«
NO
ScroL
ª
«
rEd
COLOr
ª
«
5
d-LEV
ª
«
000
CodE
DISPLAY UPDATE TIME
This parameter sets the display update time in seconds.
10.5 2seconds
After Quick
Programming with
correct code entry at
CodE prompt *

F
498 www.redlion.net
SETPOINT VALUE
Enter the desired setpoint value. The decimal point position for the setpoint
and hysteresis values follow the selection set in Module 1.
-9999 to 99999
5.4 MODULE 4 - SETPOINT OUTPUT PARAMETERS (4-SPt)
PARAMETER MENU
The Setpoint Output Parameters are only active when an optional output
module is installed in the meter.
Enter the setpoint (output) to be programmed. The nin the following
parameters will reflect the chosen setpoint number. After the chosen setpoint
is completely programmed, the display will return to SPSEL. Repeat steps for
each setpoint to be programmed. Select NO to exit the module. The number of
setpoints available is setpoint output card dependent.
SETPOINT SELECT
SP-2SP-1NO
ª
«
NO
SPSEL
Select YES to enable Setpoint 2 and access the setup parameters. If NO is
selected, the unit returns to SPSELand setpoint 2 is disabled.
SETPOINT 2 ENABLE
NOYES
ª
«
NO
Enb-2
Enter the action for the selected setpoint (output). See Setpoint Output
Figures for a visual detail of each action.
SETPOINT ACTION
ª
«
HI-Ub
Act-n
ª
«
100
SPt-n
LO-UbHI-UbLO-bL
HI-bL
LO-Ub =
HI-Ub =
LO-bL =
HI-bL =
Low Acting, with unbalanced hysteresis
High Acting, with unbalanced hysteresis
Low Acting, with balanced hysteresis
High Acting, with balanced hysteresis
High Acting (Balanced Hys) = HI-bL
Low Acting (Unbalanced Hys) = LO-Ub
Low Acting (Balanced Hys) = LO-bL
High Acting (Unbalanced Hys) = HI-Ub
ª
«
2
HYS-n
HYSTERESIS VALUE
1 to 59999
Enter desired hysteresis value. See Setpoint Output Figures for visual
explanation of how setpoint output actions (balanced and unbalanced) are
affected by the hysteresis. When the setpoint is a control output, usually
balanced hysteresis is used. For alarm applications, usually unbalanced
hysteresis is used. For unbalanced hysteresis modes, the hysteresis functions on
the low side for high acting setpoints and functions on the high side for low
acting setpoints.
Note: Hysteresis eliminates output chatter at the switch point, while time delay
can be used to prevent false triggering during process transient events.
ª
«
0.0
tOF-n
ª
«
0.0
tON-n
OFF TIME DELAY
ON TIME DELAY
OUTPUT RESET ACTION
LAtCHAuto L-dLY
0.0 to 599.9 Sec
0.0 to 599.9 Sec
Enter the time value in seconds that the output is delayed from turning on
after the trigger point is reached. A value of 0.0 allows the meter to update the
output status per the response time listed in the Specifications.
Enter the time value in seconds that the output is delayed from turning off
after the trigger point is reached. A value of 0.0 allows the meter to update the
output status per the response time listed in the Specifications.
Enter the reset action of the output. See figure for details.
Auto = Automatic action; This action allows the output to automatically reset off
at the trigger points per the Setpoint Action shown in Setpoint Output
Figures. The “on” output may be manually reset (off) immediately by the
front panel RST button or user input.The output remains off until the trigger
point is crossed again.
LAtCH = Latch with immediate reset action; This action latches the output on at
the trigger point per the Setpoint Action shown in Setpoint Output Figures.
Latch means that the output can only be turned off by the front panel RST
button or user input manual reset, serial reset command or meter power cycle.
ª
«
Auto
rSt-n

F
4991-717-767-6511
5.5 MODULE 5 - SERIAL SETUP PARAMETERS (5-SSEr)
Enter the probe burn-out action. In the event of a temperature probe failure
(open), the output can be programmed to be on or off.
PROBE BURN-OUT ACTION
ONOFF
This parameter enables the backlight CUB5 to switch the backlight color when
the output state changes. This parameter is only active for the backlight version.
CHANGE DISPLAY COLOR w/OUTPUT STATE
YESNO
The Serial Setup Parameters are only active when the optional RS232 or RS485 serial communications module is installed in the meter. Refer to the CUB5COM
bulletin for complete details on CUB5 serial communications.
PARAMETER MENU
This parameter enables the RST button or user input to reset the output when
the display is reset.
Note: For this parameter to operate, the RST button or User Input being used
must be set to dSP and the Input value must be displayed. If these conditions are
not met, the output will not reset.
ª
«
YES
rEn-n
OUTPUT RESET WITH DISPLAY RESET
YESNO
When YES, the output is disabled (after a power up) until the trigger point is
crossed. Once the output is on, the output operates normally per the Setpoint
Action and OutputReset Action.
ª
«
NO
Stb-n
STANDBY OPERATION
YESNO
When the user input or RST button is activated (momentary action), the
corresponding “on” output is reset immediately and remains off until the
trigger point is crossed again. (Previously latched alarms will be off if power
up Display Value is lower than setpoint value.)
L-dLY = Latch with delay reset action; This action latches the output on at the
trigger point per the Setpoint Action shown in Setpoint Output Figures. Latch
means that the output can only be turned off by the front panel RST button
or user input manual reset, serial reset command or meter power cycle. When
the user input or RST button is activated (momentary action), the meter
delays the event until the corresponding “on” output crosses the trigger off
point. (Previously latched outputs are off if power up Display Value is lower
than setpoint value. During a power cycle, the meter erases a previous L-dLY
reset if it is not activated at power up.)
Setpoint Output Reset Actions
ª
«
NO
ChC-n
ª
«
OFF
brn-n

F
500 www.redlion.net
CUB5TC PROGRAMMING QUICK OVERVIEW
Press and hold SEL button
to enter Programming Mode.

F
5011-717-767-6511
zMINIMUM AND MAXIMUM DISPLAY CAPTURE
zLCD, REFLECTIVE OR GREEN/RED LED BACKLIGHTING
z0.48" (12.2 mm) HIGH DIGITS
zOPTIONAL SETPOINT OUTPUT MODULES
zOPTIONAL SERIAL COMMUNICATION MODULES (RS232 or RS485)
zOPERATES FROM 9 TO 28 VDC POWER SOURCE
zFRONT PANEL OR CRIMSON PROGRAMMABLE
zDISPLAY COLOR CHANGE CAPABILITY AT SETPOINT OUTPUT
zNEMA 4X/IP65 SEALED FRONT BEZEL
MODEL CUB5RT - MINIATURE ELECTRONIC 5-DIGIT RTD METER
GENERAL DESCRIPTION
The CUB5 provides the user the ultimate in flexibility, from its complete user
programming to the optional setpoint control and communication capability.
The CUB5RT accepts an RTD input and provides a temperature display in
Celcius or Farenheit. The meter also features minimum and maximum display
capture, display offset, °F or °C indicator, and programmable user input. The
display can be toggled either manually or automatically between the selected
displays.
The CUB5 display has 0.48" (12.2 mm) high digits. The LCD is available in
two versions, reflective and red/green backlight. The backlight version is user
selectable for the desired color and also has variable display intensity.
The capability of the CUB5 can be easily expanded with the addition of
option modules. Setpoint capability is field installable with the addition of the
setpoint output modules. Serial communications capability for RS232 or RS485
is added with a serial option module.
The CUB5 can be powered from an optional Red Lion®Micro-Line/Sensor
Power Supply (MLPS1000), which attaches directly to the back of a CUB5. The
MLPS1 is powered from 85 to 250 VAC and provides up to 400 mA to drive the
unit and sensors.
SAFETY SUMMARY
All safety related regulations, local codes and instructions that appear in this
literature or on equipment must be observed to ensure personal safety and to
prevent damage to either the instrument or equipment connected to it. If
equipment is used in a manner not specified by the manufacturer, the protection
provided by the equipment may be impaired.
Do not use this meter to directly command motors, valves, or other actuators
not equipped with safeguards. To do so can be potentially harmful to persons or
equipment in the event of a fault to the meter.
CAUTION: Risk of Danger.
Read complete instructions prior to
installationand operation of the unit.
CAUTION: Risk of electric shock.
DIMENSIONS In inches (mm)
Note: Recommended minimum clearance (behind the panel) for mounting clip installation is 2.15" (54.6) H x 3.00" (76.2) W.
C
C
US LISTED
US LISTED
UL
R
IND. CONT. EQ.
51EB
zRTD INPUTS
RTD types Pt385, Pt392, Ni672, Cu427
zPROGRAMMABLE TEMPERATURE OFFSET
zSELECTABLE °F or °C WITH 1 or 0.1 DEGREE RESOLUTION
z°F OR °C DISPLAY ANNUNCIATORS

F
502 www.redlion.net
1. DISPLAY: 5 digit LCD 0.48" (12.2 mm) high digits
CUB5RTR0: Reflective LCD with full viewing angle
CUB5RTB0: Transmissive LCD with selectable red or green LED backlight,
viewing angle optimized. Display color change capability with output state
when using an output module.
2. POWER: Input voltage range is +9 to +28 VDC with short circuit and input
polarity protection. Must use an RLC model MLPS1 or a NEC Class 2 or
SELV rated power supply.
3. READOUT:
Resolution: 1 or 0.1 degrees
Scale: °F or °C
Offset Range: -19999 to 19999 display units
4. RTD INPUTS:
Isolation: Input and EXC terminals are not electrically isolated from the
power supply or optional comms cards.
Response Time: 500 msec.
Failed Sensor Display: OPEN or Short
Overrange/Underrange Input: OLOL/ULUL
Overrange/Underrange Display : “.....”/“-.....”
Maximum Input Voltage: 30 VDC
Type: 2, 3 or 4 wire
Excitation current: 100 ohm range: 165 μA
10 ohm range: 2.5 mA
Lead resistance: 100 ohm range: 10 ohm/lead max.
10 ohm range: 3 ohms/lead max.
Balanced Lead Resistance: Automatically compensated up to max per lead.
Unbalanced Lead Resistance: Uncompensated.
*After 20 min. warm-up. Accuracy is specified in two ways: Accuracy at
23°C and 15 to 75% RH environment; and Accuracy over a -35 to 75°C and 0
to 85% RH (non condensing) environment. Accuracy specified over the -35 to
75°C operating range includes meter tempco effects. The specification includes
the A/D conversion errors and linearization conformity. Total system accuracy
is the sum of meter and probe errors. Accuracy may be improved by field
calibrating the meter readout at the temperature of interest.
5. USER INPUT (USR): Programmable input. Connect terminal to common
(USR COMM) to activate function. Internal 10KΩpull-up resistor to +9 to
28 VDC.
Threshold Levels: VIL = 1.0 V max; VIH = 2.4 V min; VMAX = 28 VDC
Response Time: 5 msec typ.; 50 msec debounce (activation and release)
6. CERTIFICATIONS AND COMPLIANCES:
SAFETY
UL Recognized Component, File #E179259, UL61010A-1, CSA 22.2 No. 61010-1
Recognized to U.S. and Canadian requirements under the Component
Recognition Program of Underwriters Laboratories, Inc.
UL Listed, File # E137808, UL508, CSA C22.2 No. 14-M95
LISTED by Und. Lab. Inc. to U.S. and Canadian safety standards
Type 4X Indoor Enclosure rating (Face only), UL50
IECEE CB Scheme Test Certificate #US/9257C/UL
CB Scheme Test Report #E179259-V01-S02
Issued by Underwriters Laboratories, Inc.
IEC 61010-1, EN 61010-1: Safety requirements for electrical equipment
for measurement, control, and laboratory use, Part 1.
IP65 Enclosure rating (Face only), IEC 529
ELECTROMAGNETIC COMPATIBILITY
Emissions and Immunity to EN 61326: Electrical Equipment for
Measurement, Control and Laboratory use.
Note:
1. Criterion A: Normal operation within specified limits.
Refer to EMC Installation Guidelines for additional information.
7. MEMORY: Nonvolatile E2PROM memory retains all programming
parameters and max/min values when power is removed.
8. CONNECTIONS: Wire clamping screw terminals
Wire Strip Length: 0.3" (7.5 mm)
Wire Gage: 30-14 AWG copper wire
Torque: 5 inch-lbs (0.565 N-m) max.
GENERAL METER SPECIFICATIONS
ORDERING INFORMATION
TYPE MODEL NO. DESCRIPTION PART NUMBER
CUB5 CUB5RT CUB5RTB0
CUB5RTR0
Optional Plug-in Cards CUB5SNK
CUB5RLY
CUB5USB
CUB5COM
USB Programming Card for CUB5 Products
RS485 Serial Communications Card
Dual Sinking Output Card
Single Relay Output Card
CUB5USB0
CUB5COM1
CUB5SNK0
CUB5RLY0
Accessories
CBLUSB
CBLPROG
CBPRO
MLPS1
USB Programming Cable
RS232 Programming Cable (DB9-RJ11)
Crimson 2 PC Configuration Software for Windows 98, ME, 2000, XP 1
Micro-Line Power Supply, 85 to 250 VAC
CBLUSB00
CBLPROG0
SFCRD200
MLPS1000
RTD Meter with Backlight Display
RTD Meter with Reflective Display
MODEL
NO. DISPLAY COLOR
INPUT CURRENT
@ 9 VDC WITHOUT
CUB5RLY0
INPUT CURRENT
@ 9 VDC WITH
CUB5RLY0
CUB5RTR0 --- 10 mA 40 mA
CUB5RTB0 Red (max intensity) 85 mA 115 mA
CUB5RTB0 Green (max intensity) 95 mA 125 mA
Class AEN 55011Emissions
Emissions:
30 A/m
3 V/rms
Criterion A
Criterion A
EN 61000-4-8
EN 61000-4-6RF conducted interference
1 kV L-L,
Criterion AEN 61000-4-5Surge
1 kV signal
2 kV power
Criterion AEN 61000-4-4Fast transients (burst)
2 kV L&N-E power
10 V/m
Criterion AEN 61000-4-3Electromagnetic RF fields
8 kV air discharge
4 kV contact discharge
Criterion AEN 61000-4-2Electrostatic discharge
Immunity to Industrial Locations:
Power frequency magnetic fields
1 Crimson 2 software is a free download from http://www.redlion.net/
100 ohm Pt
alpha = .00385 -200 to 850°C 0.4°C 1.6°C IEC 751
100 ohm Pt
alpha = .00392 -200 to 850°C 0.4°C 1.6°C no official
standard
120 ohm Nickel
alpha = .00672 -80 to 260°C 0.2°C 0.5°C no official
standard
INPUT TYPE
10 ohm Copper
alpha = .00427 -100 to 260°C 0.4°C 0.9°C no official
standard
RANGE ACCURACY*
(18 to 28°C)
ACCURACY*
(0 to 50°C) STANDARD

F
5031-717-767-6511
9. ENVIRONMENTAL CONDITIONS:
Operating Temperature Range for CUB5TCR0: -35 to 75°C
Operating Temperature Range for CUB5TCB0 depends on display color
and intensity level as per below:
Storage Temperature: -35 to 85°C
Operating and Storage Humidity: 0 to 85% max. relative humidity (non-
condensing)
Vibration According to IEC 68-2-6: Operational 5 to 500 Hz, in X, Y, Z
direction for 1.5 hours, 5g’s.
Shock According to IEC 68-2-27: Operational 30 g, 11 msec in 3 directions.
Altitude: Up to 2000 meters
10. CONSTRUCTION: This unit is rated for NEMA 4X/IP65 requirements for
indoor use. Installation Category I, Pollution Degree 2. High impact plastic
case with clear viewing window. Panel gasket and mounting clip included.
11. WEIGHT: 3.2 oz (100 g)
ADDING OPTION CARDS
The CUB5 meters can be fitted with optional output cards and/or serial
communications cards. The details for the plug-in cards can be reviewed in the
specification section below. The plug-in cards, that are sold separately, can be
installed initially or at a later date.
WARNING: Disconnect all power to the unit before
installing Plug-in card.
SINGLE RELAY CARD
Type: Single FORM-C relay
Isolation To Sensor & User Input Commons: 1400 Vrms for 1 min.
Working Voltage: 150 Vrms
Contact Rating: 1 amp @ 30 VDC resistive; 0.3 amp @ 125 VAC resistive
Life Expectancy: 100,000 minimum operations
Response Time:
Turn On Time: 4 msec max.
Turn Off Time: 4 msec max.
DUAL SINKING OUTPUT CARD
Type: Non-isolated switched DC, N Channel open drain MOSFET
Current Rating: 100 mA max.
VDS ON: 0.7 V @ 100 mA
VDS MAX: 30 VDC
Offstate Leakage Current: 0.5 mA max.
RS485 SERIAL COMMUNICATIONS CARD
Type: RS485 multi-point balanced interface (non-isolated)
Note: Non-grounded (isolated) RTD probes must be used when multiple units
are connected in an RS485 network, or measurement errors will occur.
Baud Rate: 300 to 38.4k
Data Format: 7/8 bits; odd, even, or no parity
Bus Address: 0 to 99; max 32 meters per line
Transmit Delay: Selectable (refer to CUB5COM bulletin)
RS232 SERIAL COMMUNICATIONS CARD
Type: RS232 half duplex (non-isolated)
Baud Rate: 300 to 38.4k
Data Format: 7/8 bits; odd, even, or no parity
OPTIONAL PLUG-IN CARDS
1.0 INSTALLING THE METER
INSTALLATION
The meter meets NEMA 4X/IP65 requirements when properly installed. The
unit is intended to be mounted into an enclosed panel. Prepare the panel cutout
to the dimensions shown. Remove the panel latch
from the unit. Slide the panel gasket over the rear
of the unit to the back of the bezel. The unit
should be installed fully assembled. Insert the
unit into the panel cutout.
While holding the unit in place, push the panel latch over the rear of the unit
so that the tabs of the panel latch engage in the slots on the case. The panel latch
should be engaged in the farthest forward slot possible. To achieve a proper seal,
tighten the latch screws evenly until the unit is snug in the panel (Torque to
approx. 28 to 36 in-oz [0.202 to 0.26 N-m]). Do not over-tighten the screws.
INSTALLATION ENVIRONMENT
The unit should be installed in a location that does not exceed the operating
temperature and provides good air circulation. Placing the unit near devices that
generate excessive heat should be avoided.
The bezel should only be cleaned with a soft cloth and neutral soap product.
Do NOT use solvents. Continuous exposure to direct sunlight may accelerate the
aging process of the bezel.
Do not use tools of any
kind (screwdrivers, pens,
pencils, etc.) to operate the
keypad of the unit.
TEMPERATURE
1 & 2 -35 to 75°C
3-35 to 70°C
4-35 to 60°C
5-35 to 50°C
1 & 2 -35 to 75°C
3-35 to 65°C
5
4
-35 to 35°C
-35 to 50°C
INTENSITY LEVEL
Green Display
Red Display

F
504 www.redlion.net
WIRING OVERVIEW
Electrical connections are made via screw-clamp terminals located on the
back of the meter. All conductors should conform to the meter’s voltage and
current ratings. All cabling should conform to appropriate standards of good
installation, local codes and regulations. It is recommended that the power
supplied to the meter (DC or AC) be protected by a fuse or circuit breaker.
Strip the wire, leaving approximately 0.3" (7.5 mm) bare lead exposed
(stranded wires should be tinned with solder.) Insert the lead under the correct
screw-clamp terminal and tighten until the wire is secure. (Pull wire to verify
tightness.) Each terminal can accept up to one #14 AWG (2.55 mm) wire, two
#18 AWG (1.02 mm), or four #20 AWG (0.61 mm).
EMC INSTALLATION GUIDELINES
Although this meter is designed with a high degree of immunity to Electro-
Magnetic Interference (EMI), proper installation and wiring methods must be
followed to ensure compatibility in each application. The type of the electrical
noise, source or coupling method into the meter may be different for various
installations. The meter becomes more immune to EMI with fewer I/O
connections. Cable length, routing, and shield termination are very important
and can mean the difference between a successful or troublesome installation.
Listed below are some EMC guidelines for successful installation in an
industrial environment.
1. The meter should be mounted in a metal enclosure, which is properly
connected to protective earth.
2. Use shielded (screened) cables for all Signal and Control inputs. The shield
(screen) pigtail connection should be made as short as possible. The
connection point for the shield depends somewhat upon the application.
Listed below are the recommended methods of connecting the shield, in order
of their effectiveness.
a. Connect the shield only at the panel where the unit is mounted to earth
ground (protective earth).
b. Connect the shield to earth ground at both ends of the cable, usually when
the noise source frequency is above 1 MHz.
c. Connect the shield to common of the meter and leave the other end of the
shield unconnected and insulated from earth ground.
3. Never run Signal or Control cables in the same conduit or raceway with AC
power lines, conductors feeding motors, solenoids, SCR controls, and
heaters, etc. The cables should be ran in metal conduit that is properly
grounded. This is especially useful in applications where cable runs are long
and portable two-way radios are used in close proximity or if the installation
is near a commercial radio transmitter.
4. Signal or Control cables within an enclosure should be routed as far as possible
from contactors, control relays, transformers, and other noisy components.
5. In extremely high EMI environments, the use of external EMI suppression
devices, such as ferrite suppression cores, is effective. Install them on Signal
and Control cables as close to the unit as possible. Loop the cable through the
core several times or use multiple cores on each cable for additional protection.
Install line filters on the power input cable to the unit to suppress power line
interference. Install them near the power entry point of the enclosure. The
following EMI suppression devices (or equivalent) are recommended:
Ferrite Suppression Cores for signal and control cables:
Fair-Rite # 0443167251 (RLC# FCOR0000)
TDK # ZCAT3035-1330A
Steward # 28B2029-0A0
Line Filters for input power cables:
Schaffner # FN610-1/07 (RLC# LFIL0000)
Schaffner # FN670-1.8/07
Corcom # 1 VR3
Note: Reference manufacturer’s instructions when installing a line filter.
6. Long cable runs are more susceptible to EMI pickup than short cable runs.
Therefore, keep cable runs as short as possible.
7. Switching of inductive loads produces high EMI. Use of snubbers across
inductive loads suppresses EMI.
Snubber: RLC# SNUB0000.
3.0 WIRING THE METER
2.0 INSTALLING PLUG-INCARDS
WARNING: Exposed line voltage exists on the circuit boards.
Remove all power to the meter and load circuits before
accessing inside of the meter.
CAUTION: The Plug-in cards and main circuit board contain static
sensitive components. Before handling the cards, discharge
static charges from your body by touching a grounded bare
metal object. Ideally, handle the cards at a static controlled
clean workstation. Also, only handle the cards by the edges.
Dirt, oil or other contaminants that may contact the cards can
adversely affect circuit operation.
REMOVING THE REAR COVER
To remove the rear cover, locate the cover locking tab below the 2nd and 3rd
input terminals. To release the tab, insert a small, flat blade screwdriver between
the tab and the plastic wall below the terminals. Inserting the screwdriver will
provide enough pressure to release the tab locks. To replace the cover, align the
cover with the input terminals and press down until the cover snaps into place.
The Plug-in cards are separately purchased option cards that perform specific
functions. The cards plug into the main circuit board of the meter.
Comms Card
Setpoint Card
Range Jumpers
2.0 SETTING THE JUMPERS
INPUT RANGE JUMPER
This jumper is used to select the proper input range. The input range selected
in programming must match the jumper setting. Select a range that is high
enough to accommodate the maximum input signal to avoid overloads. To
access the jumper, remove the rear cover of the meter.
Warning: Exposed line voltage exists on the circuit boards. Remove
all power to the meter and load circuits before accessing inside of
the meter.
REMOVING THE REAR COVER
To remove the rear cover, locate the cover locking tab below the 2nd and 3rd
input terminals. To release the tab, insert a small, flat blade screwdriver between
the tab and the plastic wall below the terminals. Inserting the screwdriver will
provide enough pressure to release the tab locks. To replace the cover, align the
cover with the input terminals and press down until the cover snaps into place.

F
5051-717-767-6511
3.1 POWER WIRING
DC Power
+9 to +28 VDC: +VDC
Power Common: -VDC
3.2 USER INPUT WIRING
Sinking Logic
USR COMM
USR
The user input of the meter is
internally pulled up to +9 to +28 V
with 10 K resistance. The input is
active when it is pulled low (<0 .7 V).
Connect external switching device between the
User Input terminal and User Input Common.
}
3.3 INPUT WIRING
3.4 SETPOINT (OUTPUT) WIRING
3.5 SERIAL COMMUNICATION WIRING
SINGLE SETPOINT RELAY PLUG-IN CARD
SERIAL COMMUNICATIONS PLUG-IN CARD RJ11 CONNECTOR PIN OUTS
ELECTRICAL CONNECTIONS
DUAL SETPOINT N-FET OPEN DRAIN PLUG-IN CARD ELECTRICAL CONNECTIONS
3-WIRE RTD 2-WIRE RTD CAUTION: Power input common and sensor input common are NOT isolated
from user input common. In order to preserve the safety of the meter
application, the power input common and the sensor input common must
be suitably isolated from hazardous live earth referenced voltages; or
input common must be at protective earth ground potential. If not, hazardous
live voltage may be present at the User Inputs and User Input Common
terminals. Appropriate considerations must then be given to the potential of
the user input common with respect to earth common; and the common of
the isolated plug-in cards with respect to input common.
Output Common is not isolated from DC Power Common. Load
must be wired between OSNK terminal and V+ of the load supply.

F
506 www.redlion.net
4.0 REVIEWING THE FRONT BUTTONS AND DISPLAY
PROGRAMMING MODE ENTRY (SEL BUTTON)
It is recommended that all programming changes be made off line, or before
installation. The meter normally operates in the Display Mode. No parameters
can be programmed in this mode. The Programming Mode is entered by
pressing and holding the SEL button. If it is not accessible then it is locked by
either a security code, or a hardware lock.
MODULE ENTRY (SEL & RST BUTTONS)
The Programming Menu is organized into separate modules. These modules
group together parameters that are related in function. The display will alternate
between Pro and the present module. The RST button is used to select the desired
module. The displayed module is entered by pressing the SEL button.
MODULE MENU (SEL BUTTON)
Each module has a separate module menu (which is shown at the start of each
module discussion). The SEL button is pressed to advance to a particular
parameter to be changed, without changing the programming of preceding
parameters. After completing a module, the display will return to Pro NO.
Programming may continue by accessing additional modules.
SELECTION / VALUE ENTRY
For each parameter, the display alternates between the present parameter and
the selections/value for that parameter. The RST button is used to move through
the selections/values for that parameter. Pressing the SEL button, stores and
activates the displayed selection/value. This also advances the meter to the next
parameter.
For numeric values, press the RST button to access the value. The right hand
most digit will begin to flash. Pressing the RST button again increments the
digit by one or the user can hold the RST button and the digit will automatically
scroll. The SEL button will advance to the next digit. Pressing and holding the
SEL button will enter the value and move to the next parameter.
PROGRAMMING MODE EXIT (SEL BUTTON)
The Programming Mode is exited by pressing the SEL button with Pro NO
displayed. This will commit any stored parameter changes to memory and
return the meter to the Display Mode. (If power loss occurs before returning to
the Display Mode, verify recent parameter changes.)
PROGRAMMING TIPS
It is recommended to start with Module 1 and proceed through each module
in sequence. When programming is complete, it is recommended to record the
parameter programming and lock out parameter programming with the user
input or programming security code.
FACTORY SETTINGS
Factory Settings may be completely restored in Module 2. This is useful
when encountering programming problems.
Pressing both the SEL and the RST button on power-up will also load the
factory settings and display rESEt. This allows operation in the event of a
memory failure or corrupted data.
ALTERNATING SELECTION DISPLAY
In the explanation of the modules, the following dual display with arrows will
appear. This is used to illustrate the display alternating between the parameter
on top and the parameter’s Factory Setting on the bottom. In most cases,
selections and values for the parameter will be listed on the right.
5.0 PROGRAMMING THE METER
OVERVIEW
PROGRAMMING MENU
Indicates Program Mode Alternating Display
Factory Settings are shown.
Parameter
Selection/Value
BUTTON DISPLAY MODE OPERATION ENTERING PROGRAM MODE PROGRAMMING MODE OPERATION
SEL Index display through enabled values Press and hold for 2 seconds to activate Store selected parameter and index to next parameter
RST Resets values (MIN / MAX) or outputs Advances through the program menu
Increments selected parameter value or selection
OPERATING MODE DISPLAY DESIGNATORS
MAX - Maximum display capture value
MIN - Minimum display capture value
“1” - To the right of the display indicates setpoint 1 output activated.
“2” - To the right of the display indicates setpoint 2 output activated.
Pressing the SEL button toggles the meter through the selected displays. If display scroll is enabled, the display will toggle automatically every four seconds between
the enabled display values.
ª
«
N0
USrIN

F
5071-717-767-6511
5.1 MODULE 1 - SIGNAL INPUT PARAMETERS (1-INP)
PARAMETER MENU
ª
«
Pt385
tYPE
RTD TYPE
ª
«
0
dECPt 0.00
DISPLAY DECIMAL POINT
Select the decimal point location for the desired display resolution. This
selection applies for the Input, MAX and MIN displays.
ª
«
1
FILtr
FILTER SETTING
If the displayed temperature is difficult to read due to small process
variations or noise, increased levels of filtering will help to stabilize the display.
Software filtering effectively combines a fraction of the current input reading
with a fraction of the previous displayed reading to generate the new display.
Filter values represent no filtering (0), up to heavy filtering (3). A value of 1
for the filter uses 1/4 of the new input and 3/4 of the previous display to
generate the new display. A filter value of 2 uses 1/8 new and 7/8 previous. A
filter value of 3 uses 1/16 new and 15/16 previous.
0,1 2 3
ª
«
10
bANd FILTER BAND
The filter will adapt to variations in the input signal. When the variation
exceeds the input filter band value, the filter disengages. When the variation
becomes less than the band value, the filter engages again. This allows for a
stable readout, but permits the display to settle rapidly after a large process
change. The value of the band is in display units, independent of the Display
Decimal Point position. A band setting of ‘0’ keeps the filter permanently
engaged at the filter level selected in the previous parameter.
00 to 199 display units
Select the RTD type used for the application. The appropriate curve will be
automatically loaded for the selected type. The position of the Input Range
Jumper must match the RTD type selected.
ª
«
°F
SCALE TEMPERATURE SCALE
Select the temperature scale. This selection applies for the Input, MAX and
MIN displays.
°C°F
RANGE JUMPERSTYPESELECTION
10 ohm
RTD Copper 10 Ω
Cu427
100 ohmRTD Nickel 672
Ni672
100 ohmRTD Platinum 392
Pt392
100 ohmRTD Platinum 385
Pt385
ª
«
0
OFSEt DISPLAY OFFSET VALUE
The temperature display can be corrected with an offset value. This can be
used to compensate for probe errors, errors due to variances in probe placement
or adjusting the readout to a reference thermometer.
-19999 to 19999
USER INPUT FUNCTION
ª
«
NO
USrIN
Setpoint 1 and 2 Reset
Setpoint 1 Reset
Setpoint 2 Reset
Print and Reset
Reset both setpoint 1 and 2 outputs.
Resets setpoint 1 output.
Resets setpoint 2 output.
Same as Print Request followed by a
momentary reset of the assigned value(s).
rSt12
rSt-1
rSt-2
P-r5t
Print Request
Serial transmit of the active parameters
selected in the Print Options menu
(Module 5).
Print
Select the value(s) to which the User Input Function is assigned. The User
Input Assignment only applies if a selection of reset, display hold, or print and
reset is selected in the User Input Function menu.
USER INPUT ASSIGNMENT
ª
«
dSP
U-ASN
dSP
HI-LO
LO
HI
MODE
Reset (Edge triggered)
Program Mode Lock-out
No Function
DESCRIPTIONDISPLAY
Display Select
(Edge Triggered) Advance once for each activation.
d-SEL
Backlight Color
(Edge Triggered)
Change backlight color with each
activation (backlight version only).
COLOr
Display Intensity Level
(Edge Triggered)
Increase intensity one level for each
activation (backlight version only).
d-LEV
Display Hold
Holds the assigned display, but all other
meter functions continue as long as
activated (maintained action).
Resets the assigned value(s) to the
current input value.
rESEt
d-HLd
See Programming Mode Access chart
(Module 3).
P-Loc
User Input disabled.
NO

F
508 www.redlion.net
5.2 MODULE 2 - SECONDARY FUNCTION PARAMETERS (2-SEC)
PARAMETER MENU
MIN DISPLAY ENABLE
YESNO
ª
«
2.0
HI-t
ª
«
NO
LO-En
ª
«
NO
FCS
MAX CAPTURE DELAY TIME
When the Input Display is above the present MAX value for the entered
delay time, the meter will capture that display value as the new MAX reading.
A delay time helps to avoid false captures of sudden short spikes.
ª
«
2.0
LO-t
MIN CAPTURE DELAY TIME
When the Input Display is below the present MIN value for the entered delay
time, the meter will capture that display value as the new MIN reading. A delay
time helps to avoid false captures of sudden short spikes.
0.0 to 999.9 sec.
ª
«
NO
HI-En
MAX DISPLAY ENABLE
0.0 to 999.9 sec.
Select YES to perform any of the Factory Service Operations shown below.
FACTORY SERVICE OPERATIONS
yESNO
YESNO
Enables the Maximum Display Capture capability.
Enables the Minimum Display Capture capability.
The CUB5RT uses stored resistance calibration values
to provide accurate temperature measurements. Over
time, the electrical characteristics of the components
inside the meter could slowly change. The result is that
the stored calibration values may no longer accurately
define the input circuit. For most applications, recalibration every 1 to 2 years
should be sufficient.
Calibration of the CUB5RT involves a resistance calibration. Allow 30
minute warm up before performing any calibration related procedure. The
following procedures should be performed at an ambient temperature of 15 to
35 °C (59 to 95 °F).
Calibration should only be performed by individuals experienced in
calibrating electronic equipment.
CAUTION: The accuracy of the calibration equipment will directly affect the
accuracy of the CUB5RT.
10 OHM RTD Range Calibration
1. Set the Input Range Jumper to 10 ohm.
2. With the display at CodE 48, press and hold the SEL button for 2 seconds. Unit
will display CAL NO.
3. Press the RST button. Display reads CAL r10.
4. Press the SEL button. Display reads 00r.
5. Apply a direct short to terminals INP+, EXC, and COMM using a three wire
link. Press SEL. Display reads CALC for about 15 seconds.
6. When the display reads 15.0r, apply a precision resistance of 15 ohms (with an
accuracy of 0.01% or better) to terminals INP+, EXC, and COMM using a
three wire link. Press SEL. Display reads CALC for about 15 seconds.
7. When display reads CAL NO, press the SEL button to exit calibration, or
proceed to the 100 ohm RTD Range Claibration.
100 OHM RTD Range Calibration
1. Set the Input Range Jumper to 100 ohm.
2. With the display at CodE 48, press and hold the SEL button for 2 seconds. Unit
will display CAL NO.
3. Press the RST button until the display reads CAL r100.
4. Press the SEL button. Display reads 0.0r.
5. Apply a direct short to terminals INP+, EXC, and COMM using a three wire
link. Press SEL. Display reads CALC for about 15 seconds.
6. When the display reads 300.0r, apply a precision resistance of 300 ohms (with
an accuracy of 0.01% or better) to terminals INP+, EXC, and COMM using
a three wire link. Press SEL. Display reads CALC for about 15 seconds.
7. When display reads CAL NO, press the SEL button to exit calibration.
CALIBRATION
ª
«
48
CodE
RESTORE FACTORY DEFAULT SETTINGS
Entering Code 66 will overwrite all user settings with
the factory settings. The meter will display rESEt and then
return to CodE 00. Press SEL button to exit the module.
Pressing both the SEL and the RST button on power-up
will also load the factory settings and display rESEt. This allows operation in
the event of a memory failure or corruted data.
ª
«
66
CodE
RESISTANCE DISPLAY MODE
Entering Code 85 will place the CUB5RT in a resistance
display mode. This mode is useful for diagnostic purposes
before and after calibration, or to display the measured
resistance of a connected RTD probe. If the RTD type is set
for Cu427 with the jumper set to the 10 ohm position, the display will read
resistance in 0.000 ohms resolution. For all other RTD types, with the jumper in
the 100 ohm position, the display will read in 0.00 ohms resolution.
Re-entering code 85 toggles the display back to the temperature display mode
without having to remove power from the meter. If power is removed, the
display always returns to the temperature display mode when power is reapplied.
ª
«
85
CodE

F
5091-717-767-6511
The Security Code determines the programming mode and the accessibility
of programming parameters. This code can be used along with the Program
Mode Lock-out (P-Loc) in the User Input Function parameter (Module 1).
Two programming modes are available. Full Programming mode allows all
parameters to be viewed and modified. Quick Programming mode permits only
the Setpoint values to be modified, but allows direct access to these values
without having to enter Full Programming mode.
Programming a Security Code other than 0, requires this code to be entered
at the CodE prompt in order to access Full Programming mode. Depending on the
code value, Quick Programming may be accessible before the CodE prompt
appears (see chart).
PROGRAMMING SECURITY CODE
000 to 999
USER INPUT
FUNCTION
USER INPUT
STATE
SECURITY
CODE
MODE WHEN “SEL”
BUTTON IS PRESSED
FULL PROGRAMMING
MODE ACCESS
0Full Programming Immediate Access
not P-Loc ______ 1-99 Quick Programming
100-999 CodE prompt With correct code entry
at CodE prompt *
0Programming Lock No Access
Active 1-99 Quick Programming No Access
P-Loc
100-999 CodE prompt With correct code entry
at CodE prompt *
Not Active 0-999 Full Programming Immediate Access
* Entering Code 222 allows access regardless of security code.
5.3 MODULE 3 - DISPLAY AND FRONT PANEL BUTTON
PARAMETERS (3-dSP)
PARAMETER MENU
The yES selection allows the SEL button to toggle through the enabled
displays.
FRONT PANEL DISPLAY SELECT ENABLE (SEL)
This selection allows the RST button to reset the selected value(s).
FRONT PANEL RESET ENABLE (RST)
The yES selection allows the display to automatically scroll through the
enabled displays. The scroll rate is every 4 seconds.
DISPLAY SCROLL ENABLE
NOyES
dSPNO
HI
LO
HI-LO
NOyES
Enter the desired display color, red or green. This parameter is active for
backlight units only.
DISPLAY COLOR (BACKLIGHT UNIT ONLY)
6rnrEd
Enter the desired Display Intensity Level (1-5). The display will actively dim
or brighten as levels are changed. This parameter is active for backlight units only.
DISPLAY INTENSITY LEVEL (BACKLIGHT UNIT ONLY)
1 to 5
ª
«
1
dSP-t
ª
«
yES
SEL
ª
«
dSP
rSt
ª
«
NO
ScroL
ª
«
rEd
COLOr
ª
«
5
d-LEV
ª
«
000
CodE
DISPLAY UPDATE TIME
This parameter sets the display update time in seconds.
10.5 2seconds
After Quick
Programming with
correct code entry at
CodE prompt *

F
510 www.redlion.net
SETPOINT VALUE
Enter the desired setpoint value. The decimal point position for the setpoint
and hysteresis values follow the selection set in Module 1.
-9999 to 99999
5.4 MODULE 4 - SETPOINT OUTPUT PARAMETERS (4-SPt)
PARAMETER MENU
The Setpoint Output Parameters are only active when an optional output
module is installed in the meter.
Enter the setpoint (output) to be programmed. The nin the following
parameters will reflect the chosen setpoint number. After the chosen setpoint
is completely programmed, the display will return to SPSEL. Repeat steps for
each setpoint to be programmed. Select NO to exit the module. The number of
setpoints available is setpoint output card dependent.
SETPOINT SELECT
SP-2SP-1NO
ª
«
NO
SPSEL
Select YES to enable Setpoint 2 and access the setup parameters. If NO is
selected, the unit returns to SPSELand setpoint 2 is disabled.
SETPOINT 2 ENABLE
NOYES
ª
«
NO
Enb-2
Enter the action for the selected setpoint (output). See Setpoint Output
Figures for a visual detail of each action.
SETPOINT ACTION
ª
«
HI-Ub
Act-n
ª
«
100
SPt-n
LO-UbHI-UbLO-bL
HI-bL
LO-Ub =
HI-Ub =
LO-bL =
HI-bL =
Low Acting, with unbalanced hysteresis
High Acting, with unbalanced hysteresis
Low Acting, with balanced hysteresis
High Acting, with balanced hysteresis
High Acting (Balanced Hys) = HI-bL
Low Acting (Unbalanced Hys) = LO-Ub
Low Acting (Balanced Hys) = LO-bL
High Acting (Unbalanced Hys) = HI-Ub
ª
«
2
HYS-n
HYSTERESIS VALUE
1 to 59999
Enter desired hysteresis value. See Setpoint Output Figures for visual
explanation of how setpoint output actions (balanced and unbalanced) are
affected by the hysteresis. When the setpoint is a control output, usually
balanced hysteresis is used. For alarm applications, usually unbalanced
hysteresis is used. For unbalanced hysteresis modes, the hysteresis functions on
the low side for high acting setpoints and functions on the high side for low
acting setpoints.
Note: Hysteresis eliminates output chatter at the switch point, while time delay
can be used to prevent false triggering during process transient events.
ª
«
0.0
tOF-n
ª
«
0.0
tON-n
OFF TIME DELAY
ON TIME DELAY
OUTPUT RESET ACTION
LAtCHAuto L-dLY
0.0 to 599.9 Sec
0.0 to 599.9 Sec
Enter the time value in seconds that the output is delayed from turning on
after the trigger point is reached. A value of 0.0 allows the meter to update the
output status per the response time listed in the Specifications.
Enter the time value in seconds that the output is delayed from turning off
after the trigger point is reached. A value of 0.0 allows the meter to update the
output status per the response time listed in the Specifications.
Enter the reset action of the output. See figure for details.
Auto = Automatic action; This action allows the output to automatically reset off
at the trigger points per the Setpoint Action shown in Setpoint Output
Figures. The “on” output may be manually reset (off) immediately by the
front panel RST button or user input.The output remains off until the trigger
point is crossed again.
LAtCH = Latch with immediate reset action; This action latches the output on at
the trigger point per the Setpoint Action shown in Setpoint Output Figures.
Latch means that the output can only be turned off by the front panel RST
button or user input manual reset, serial reset command or meter power cycle.
ª
«
Auto
rSt-n

F
5111-717-767-6511
5.5 MODULE 5 - SERIAL SETUP PARAMETERS (5-SSEr)
Enter the probe burn-out action. In the event of a temperature probe failure
(open or short), the output can be programmed to be on or off.
PROBE BURN-OUT ACTION
ONOFF
This parameter enables the backlight CUB5 to switch the backlight color when
the output state changes. This parameter is only active for the backlight version.
CHANGE DISPLAY COLOR w/OUTPUT STATE
YESNO
The Serial Setup Parameters are only active when the optional RS232 or RS485 serial communications module is installed in the meter. Refer to the CUB5COM
bulletin for complete details on CUB5 serial communications.
PARAMETER MENU
This parameter enables the RST button or user input to reset the output when
the display is reset.
Note: For this parameter to operate, the RST button or User Input being used
must be set to dSP and the Input value must be displayed. If these conditions are
not met, the output will not reset.
ª
«
YES
rEn-n
OUTPUT RESET WITH DISPLAY RESET
YESNO
When YES, the output is disabled (after a power up) until the trigger point is
crossed. Once the output is on, the output operates normally per the Setpoint
Action and OutputReset Action.
ª
«
NO
Stb-n
STANDBY OPERATION
YESNO
When the user input or RST button is activated (momentary action), the
corresponding “on” output is reset immediately and remains off until the
trigger point is crossed again. (Previously latched alarms will be off if power
up Display Value is lower than setpoint value.)
L-dLY = Latch with delay reset action; This action latches the output on at the
trigger point per the Setpoint Action shown in Setpoint Output Figures. Latch
means that the output can only be turned off by the front panel RST button
or user input manual reset, serial reset command or meter power cycle. When
the user input or RST button is activated (momentary action), the meter
delays the event until the corresponding “on” output crosses the trigger off
point. (Previously latched outputs are off if power up Display Value is lower
than setpoint value. During a power cycle, the meter erases a previous L-dLY
reset if it is not activated at power up.)
Setpoint Output Reset Actions
ª
«
NO
ChC-n
ª
«
OFF
brn-n

F
512 www.redlion.net
CUB5RT PROGRAMMING QUICK OVERVIEW
Press and hold SEL button
to enter Programming Mode.

F
5131-717-767-6511
zPROGRAMMABLE TC TYPE (T, E, J, K, R, S, B, N or mV SCALE)
zCONFORMS TO ITS-90 STANDARDS
zSELECTABLE °F OR °C WITH 0.1 OR 1 DEGREE DISPLAY
RESOLUTION
zSTATE-OF-THE-ART DIGITAL ELECTRONICS FOR GREATER
ACCURACY AND RELIABILITY
zFULL 4-DIGIT, HIGH VISIBILITY, 0.56" (14.2 mm) HIGH RED LED
DISPLAY
zPROGRAMMABLE TEMPERATURE OFFSET
zPROGRAMMABLE DIGITAL FILTERING ENHANCES STABILITY
zPEAK/VALLEY (HI/LO READING) MEMORY
zNEMA 4X/IP65 SEALED FRONT BEZEL
zCUSTOM UNITS OVERLAY WITH BACKLIGHT
GENERAL DESCRIPTION
The Pax Lite Thermocouple Meter accepts inputs from standard
thermocouples and precisely linearizes them. A full 4-digit display
accommodates a wide range of temperature inputs. The unit automatically
compensates for cold junction, NBS linearity and the meter’s zero and span.
The meter features a readout choice of either Fahrenheit or Celsius with 0.1
or 1 degree resolution. English Style display prompts and front panel buttons aid
the operator through set-up and operation. With a few simple steps the unit can
be used as a millivolt meter by selecting “” for thermocouple type. This
mode is useful in monitoring and displaying the actual voltage produced at the
thermocouple probe junction and as an aid in troubleshooting for a faulty
thermocouple probe.
The meter provides a Peak (HI) and Valley (LO) reading memory with
selectable capture delay time. The capture delay is used to prevent detection of
false Peak or Valley readings that may occur during start-up or unusual process
events. The Peak and Valley readings are stored at power-down to allow
monitoring the process limits over any length of time (shifts, days, etc.).
Programmable digital filtering enhances the stability of the reading. All set-
up data is stored in EEPROM, which will hold data for a minimum of 10 years
without power. The meter has several built-in diagnostic functions to alert
operators of any malfunction.
Extensive testing of noise interference mechanisms and full burn-in makes
the indicator extremely reliable in industrial environments. The front bezel
meets NEMA 4X/IP65 requirements for wash down applications.
SAFETY SUMMARY
All safety related regulations, local codes and instructions that appear in the
literature or on equipment must be observed to ensure personal safety and to
prevent damage to either the instrument or equipment connected to it. If
equipment is used in a manner not specified by the manufacturer, the protection
provided by the equipment may be impaired. Do not use this unit to directly
command motors, valves, or other actuators not equipped with safeguards. To
do so, can be potentially harmful to persons or equipment in the event of a fault
to the unit.
DEFINITION OF TERMS
INSTALLATION CATEGORY (overvoltage category) I:
Signal level, special equipment or parts of equipment, telecommunication,
electronic, etc. with smaller transient overvoltages than Installation
Category (overvoltage category) II.
INSTALLATION CATEGORY (overvoltage category) II:
Local level, appliances, portable equipment, etc. with smaller transient
overvoltages than Installation Category (overvoltage category) III.
MODEL PAXLTC - PAX LITE THERMOCOUPLE METER
CAUTION: Read complete
instructions prior to installation
and operation of the unit.
CAUTION: Risk of electric shock.
DIMENSIONS In inches (mm) Note: Recommended minimum clearance (behind the panel) for mounting clip installation is
2.1" (53.4) H x 5" (127) W.
C
C
US LISTED
US LISTED
UL
R
IND. CONT. EQ.
51EB

F
514 www.redlion.net
ORDERING INFORMATION
Meter Part Numbers
Ordering Information . . . . . . . . . . . . . . . . . . . 2
General Meter Specifications. . . . . . . . . . . . . 3
Accessories . . . . . . . . . . . . . . . . . . . . . . . . . 3
Installing the Meter . . . . . . . . . . . . . . . . . . . . 4
Wiring the Meter . . . . . . . . . . . . . . . . . . . . . . 4
Reviewing the Front Buttons and Display . . . 5
Programming the Meter . . . . . . . . . . . . . . . . 6
Calibrating the Meter. . . . . . . . . . . . . . . . . . . 7
Troubleshooting . . . . . . . . . . . . . . . . . . . . . . 8
TABLE OF CONTENTS
PAXL 0
0
TC - Thermocouple Temperature Meter
TC
Accessories Part Numbers*
MODEL NO. DESCRIPTION PART NUMBERS
Accessories
TYPE
PAXLBK Units Label Kit Accessory PAXLBK30
*This meter is shipped with °F and °C overlay labels. The label kit is only
needed if another units label is desired.

F
5151-717-767-6511
GENERAL METER SPECIFICATIONS
1. DISPLAY: 4-digit, 0.56" (14.2 mm) high LED, minus sign displayed for
negative temperatures.
Overrange/Underrange Input: Flashing “” or “”
Overrange/Underrange Display: “ ” or “ ”
2. POWER: 85 to 250 VAC, 50/60 Hz, 6 VA
Isolation: 2300 Vrms for 1 min. between input and supply (300 V working
voltage)
3. CONTROLS: Three front panel push buttons for meter set-up. Rear terminal
input for disabling the front panel.
4. THERMOCOUPLE TYPES: T, E, J, K, R, S, B, N or mV scale
5. RESOLUTION: 1 degree for all types, or 0.1 degree for T, E, J, K and N only
6. THERMOCOUPLE RANGE AND ACCURACY: All errors include NBS
conformity, cold junction effect and A/D conversion errors at 23°C after 60
minutes warm-up. Relative Humidity less than 85%.
7. INPUT IMPEDANCE: 20 MΩ, all types
8. LEAD RESISTANCE EFFECT: 20 μV/350 Ω
Max Input Voltage Protection: 70 VDC continuous
9. OPEN THERMOCOUPLE DETECTION: Display Flashes: “”
10. COLD JUNCTION COMPENSATION: Automatic, 0.02 degree/degree.
Disabled for linear mV scale.
11. READING RATE: 2.5 readings/second
12. RESPONSE TIME: 2 seconds to settle for step input (increases with
programmable digital filtering)
13. LOW FREQUENCY NOISE REJECTION:
Normal Mode Rejection: 45 dB @ 50/60 Hz (may be improved by
programmable digital filtering)
Common Mode Rejection: 120 dB, DC to 50/60 Hz
14. ENVIRONMENTAL CONDITIONS:
Operating Temperature Range: 0 to 50 °C
Storage Temperature Range: -40 to 80 °C
Operating and Storage Humidity: 85% max (non-condensing) from 0 to
50 °C
Span Drift: 40 ppm/°C
Zero Drift: 1 μV/°C
Altitude: Up to 2000 meters.
15. CERTIFICATIONS AND COMPLIANCES:
SAFETY
UL Recognized Component, File # E179259, UL3101-1, CSA C22.2 No. 1010-1
Recognized to U.S. and Canadian requirements under the Component
Recognition Program of Underwriters Laboratories, Inc.
UL Listed, File # E137808, UL508, CSA C22.2 No. 14-M95
LISTED by Und. Lab. Inc. to U.S. and Canadian safety standards
Type 4X Enclosure rating (Face only), UL50
IECEE CB Scheme Test Certificate # UL/7470A/UL
CB Scheme Test Report # 03ME09282-08292003
Issued by Underwriters Laboratories, Inc.
IEC 1010-1, EN 61010-1: Safety requirements for electrical equipment for
measurement, control, and laboratory use, Part 1.
IP65 Enclosure rating (Face only), IEC 529
ELECTROMAGNETIC COMPATIBILITY
Emissions and Immunity to EN 61326: Electrical Equipment for
Measurement, Control and Laboratory use.
Note:
1. Criterion A: Normal operation within specified limits.
16. CONSTRUCTION: This unit is rated for NEMA 4X/IP65 indoor use. One
piece bezel/case. Flame resistant. Panel gasket and mounting clip included.
17. CONNECTIONS: High compression cage-clamp terminal block
Wire Strip Length: 0.3" (7.5 mm)
Wire Gage: 30-14 AWG copper wire
Torque: 4.5 inch-lbs (0.51 N-m) max.
18. WEIGHT: 0.65 lbs. (0.24 Kg)
Class BEN 55011Emissions
Emissions:
0.5 cycle
Criterion AEN 61000-4-11Voltage dip/interruptions
3 V/rms
Criterion AEN 61000-4-6RF conducted interference
1 kV signal
1 kV L-L,
Criterion AEN 61000-4-5Surge
2 kV signal
2 kV power
Criterion AEN 61000-4-4Fast transients (burst)
2 kV L&N-E power
10 V/m
Criterion AEN 61000-4-3Electromagnetic RF fields
8 kV air discharge
4 kV contact discharge
Criterion AEN 61000-4-2Electrostatic discharge
Immunity:
ACCESSORIES
UNITS LABEL KIT (PAXLBK)
Each meter has a units indicator with backlighting that can be customized using
the Units Label Kit. The backlight is controlled in the programming.
Each meter is shipped with °F and °C overlay labels which can be installed into
the meter’s bezel display assembly.
TC TYPE RANGE ACCURACY WIRE COLOR
T-200 to +400ºC
-328 to +752ºF
0.8ºC
1.4ºF blue
E-200 to +1000ºC
-328 to +1832ºF
0.8ºC
1.4ºF purple
J-200 to +760ºC
-328 to +1400ºF
0.8ºC
1.4ºF white
K-200 to +1250ºC
-328 to +2282ºF
0.8ºC
1.4ºF yellow
R0 to +1768ºC
+32 to +3214ºF
2.1ºC
3.8ºF black
S0 to +1768ºC
+32 to +3214ºF
2.1ºC
3.8ºF black
B+150 to +1820ºC
+302 to +3308ºF
2.3ºC
4.1ºF grey
N-200 to +1300ºC
-328 to +2372ºF
0.8ºC
1.4ºF orange
mV 0.01%-10.00 to +80.00 mV

F
516 www.redlion.net
2.0 WIRING THE METER
1.0 INSTALLING THE METER
Installation
The PAX meets NEMA 4X/IP65 requirements when properly installed. The
unit is intended to be mounted into an enclosed panel. Prepare the panel cutout
to the dimensions shown. Remove the panel latch from the unit. Slide the panel
gasket over the rear of the unit to the back
of the bezel. The unit should be installed
fully assembled. Insert the unit into
the panel cutout.
While holding the unit in place, push the panel latch over the rear of the unit
so that the tabs of the panel latch engage in the slots on the case. The panel latch
should be engaged in the farthest forward slot possible. To achieve a proper seal,
tighten the latch screws evenly until the unit is snug in the panel (Torque to
approximately 7 in-lbs [79N-cm]). Do not over-tighten the screws.
Installation Environment
The unit should be installed in a location that does not exceed the maximum
operating temperature and provides good air circulation. Placing the unit near
devices that generate excessive heat should be avoided.
The bezel should be cleaned only with a soft cloth and neutral soap product.
Do NOT use solvents. Continuous exposure to direct sunlight may accelerate the
aging process of the bezel.
Do not use tools of any kind (screwdrivers, pens, pencils, etc.) to operate the
keypad of the unit.
PANEL CUT-OUT
POWER WIRING
Primary AC power is connected to Terminals 1 and 2. To reduce the chance of
noise spikes entering the AC line and affecting the indicator, the AC power should
be relatively “clean” and within the specified limits. Drawing power from heavily
loaded circuits or circuits which also power loads that cycle on and off,
(contactors, relays, motors, machinery, etc.) should be avoided.
SIGNAL WIRING (TC SENSOR)
Remove power and connect the negative thermocouple lead (always red) to
TC- (Terminal 6) and the positive lead to TC+ (Terminal 5). Be certain that
connections are clean and tight. If the thermocouple probe is to be mounted
away from the meter, thermocouple extension grade wire must be used (copper
wire will not work). Use the correct type and observe the correct polarity.
Always refer to the sensor manufacturer’s instructions for probe wiring
connections, if available. For multi-probe temperature averaging applications,
two or more thermocouple probes may be connected at the meter. (Always use
the same type.) In order to minimize the chances of coupling noise into the
wires and subsequently causing bouncy and erroneous readings, proper
guidelines for thermocouple wire routing must be followed.
PROGRAM DISABLE INPUT WIRING
PGM.DIS. (Terminal 3) is a digital input that is active when connected to
Comm (Terminal 4). Any form of mechanical switch or current sinking logic with
less than 0.7 V saturation may be used. The use of shielded cable is recommended.
Follow the EMC Installation Guidelines for shield connection.
WIRING OVERVIEW
Electrical connections are made via screw-clamp terminals located on the
back of the meter. All conductors should conform to the meter’s voltage and
current ratings. All cabling should conform to appropriate standards of good
installation, local codes and regulations. It is recommended that the power
supplied to the meter be protected by a fuse or circuit breaker.
When wiring the meter, compare the numbers embossed on the back of the
meter case against those shown in wiring drawings for proper wire position. Strip
the wire, leaving approximately 0.3" (7.5 mm) bare lead exposed (stranded wires
should be tinned with solder). Insert the lead under the correct screw-clamp
terminal and tighten until the wire is secure. (Pull wire to verify tightness.)
AC Power
Terminal 1: VAC
Terminal 2: VAC
Thermocouple

F
5171-717-767-6511
EMC INSTALLATION GUIDELINES
Although this meter is designed with a high degree of immunity to Electro-
Magnetic Interference (EMI), proper installation and wiring methods must be
followed to ensure compatibility in each application. The type of the electrical
noise, source or coupling method into the meter may be different for various
installations. The meter becomes more immune to EMI with fewer I/O
connections. Cable length, routing, and shield termination are very important
and can mean the difference between a successful or troublesome installation.
Listed below are some EMC guidelines for successful installation in an
industrial environment.
1. The meter should be mounted in a metal enclosure, which is properly
connected to protective earth.
2. Use shielded (screened) cables for all Signal and Control inputs. The shield
(screen) pigtail connection should be made as short as possible. The
connection point for the shield depends somewhat upon the application.
Listed below are the recommended methods of connecting the shield, in order
of their effectiveness.
a. Connect the shield only at the panel where the unit is mounted to earth
ground (protective earth).
b. Connect the shield to earth ground at both ends of the cable, usually when
the noise source frequency is above 1 MHz.
c. Connect the shield to common of the meter and leave the other end of the
shield unconnected and insulated from earth ground.
3. Never run Signal or Control cables in the same conduit or raceway with AC
power lines, conductors feeding motors, solenoids, SCR controls, and
heaters, etc. The cables should be run in metal conduit that is properly
grounded. This is especially useful in applications where cable runs are long
and portable two-way radios are used in close proximity or if the installation
is near a commercial radio transmitter.
4. Signal or Control cables within an enclosure should be routed as far as possible
from contactors, control relays, transformers, and other noisy components.
5. In extremely high EMI environments, the use of external EMI suppression
devices, such as ferrite suppression cores, is effective. Install them on Signal
and Control cables as close to the unit as possible. Loop the cable through the
core several times or use multiple cores on each cable for additional protection.
Install line filters on the power input cable to the unit to suppress power line
interference. Install them near the power entry point of the enclosure. The
following EMI suppression devices (or equivalent) are recommended:
Ferrite Suppression Cores for signal and control cables:
Fair-Rite # 0443167251 (RLC# FCOR0000)
TDK # ZCAT3035-1330A
Steward # 28B2029-0A0
Line Filters for input power cables:
Schaffner # FN610-1/07 (RLC# LFIL0000)
Schaffner # FN670-1.8/07
Corcom # 1 VR3
Note: Reference manufacturer’s instructions when installing a line filter.
6. Long cable runs are more susceptible to EMI pickup than short cable runs.
Therefore, keep cable runs as short as possible.
3.0 REVIEWING THE FRONT BUTTONS AND DISPLAY
Display Valley (LO) Reading
T
Display Peak (HI) Reading
S
PAR
PROGRAMMING MODE OPERATIONDISPLAY MODE OPERATIONKEY
Store selected parameter and index to next parameter
Increment value or change selection
Decrement value or change selection
Access Programming Mode or Display Input Reading
PEAK/VALLEY DETECTION
The meter will automatically record the highest input reading (peak) and the
lowest input reading (valley) for later recall. These values are stored at power-
down to allow monitoring the process limits over any length of time (shifts, days,
etc.). A selectable capture delay time is used to prevent detection of false peak or
valley readings caused by sudden short spikes or unusual process events.
The peak and valley readings can be viewed and reset using the front panel
keys as described below.
View Peak, Valley and Input readings:
To view Peak, press S. Meter displays followed by the Peak reading.
To view Valley, press T. Meter displays followed by the Valley reading.
To view Input, press PAR. Meter displays followed by the current
Input reading.
Note: The decimal point to the right of digit 1 flashes while the peak or valley
reading is displayed.
Reset Peak and/or Valley to the current Input reading:
To reset Peak and Valley, press Sand Tsimultaneously.
To reset Peak only, press and hold Sthen press PAR.
To reset Valley only, press and hold Tthen press PAR.
In each case, the meter displays followed by the current Input reading.

F
518 www.redlion.net
This parameter sets the amount of digital filtering applied to the input signal.
If the temperature display is difficult to read due to small variations or noise,
increased levels of filtering will help to stabilize the display. Although the
digital filter features a “moving window” to help minimize response time,
higher levels of filtering will result in slightly longer response times.
Set the desired level of input filtering by pressing the up or down arrow keys.
Press the PAR key to save the selection and advance to the next parameter.
- normal filtering - maximum filtering
ª
«
ª
«
DECIMAL POINT POSITION
TEMPERATURE DISPLAY OFFSET
ª
«
DIGITAL FILTERING
THERMOCOUPLE TYPE
TEMPERATURE SCALE
ª
«
¶
ª
«
to
- no digital filtering - increased filtering
R
SELECTION TC TYPETC TYPESELECTION
mV indicator
N
K
B
S
J
tc-j
E
T
tc-t
Select the thermocouple type by pressing the arrow keys (or ) to sequence
through the selection list. When the desired selection is displayed, press the PAR
key to save the selection and advance to the next parameter. Refer to the
thermocouple range and accuracy specification for additional TC information.
Select the desired temperature scale by pressing the up or down arrow keys.
This setting does not change the Custom Units Overlay display (if installed).
Press the PAR key to save the selection and advance to the next parameter.
Select the decimal point position by pressing the up or down arrow keys.
This sets the display resolution to 1 or 0.1 degree. This parameter is not
available for thermocouple types R, S and B, where the display resolution is
always 1 degree. When mV indicator mode is selected for thermocouple type,
the display resolution is fixed at 0.01 mV (10 μV).
Press the PAR key to save the selection and advance to the next parameter.
The temperature display can be corrected with an offset value. This can be used
to compensate for probe errors or errors due to variances in probe placement, or
to adjust the readout to a reference thermometer. Set the desired display offset
value by pressing (and/or holding) the up or down arrow keys. When the desired
offset value is displayed, press the PAR key to save the selection and advance to
the next parameter. The display resolution for the offset value is the same as the
decimal point position programmed above. The display offset is not available
when mV indicator mode is selected for thermocouple type.
When the Input display is above the present HI value or below the present
LO value for the entered delay time, the meter will capture the Input display as
the new HI or LO reading. A delay time helps to avoid false captures of sudden
short spikes or Input display variations that may occur during start-up.
Set the desired capture delay time by pressing the up or down arrow keys.
Press the PAR key to save the selection and advance to the next parameter.
PEAK (HI)/ VALLEY (LO) CAPTURE DELAY TIME
ª
«
seconds
4.0 PROGRAMMING THE METER
PROGRAMMING SEQUENCE
The Thermocouple Meter has up to seven programmable parameters that are
entered in the sequence shown above, using the front panel push buttons.
Depending on the thermocouple type selected, some parameters are not
applicable and are bypassed in the sequence.
The last programming step offers the choice of entering calibration mode.
From this mode, the user can restore the meter to factory default settings, or
recalibrate the signal input and cold junction temperature if necessary. To
prevent inadvertent entries, an access code must be keyed-in to perform any
operations in calibration mode.
Note: Programming mode can be locked out using the Program Disable input
terminal. With the PGM.DIS. terminal connected to COMM, the meter displays
“” when the PAR key is pressed, and will not enter programming mode.
PROGRAMMING MODE ENTRY
Press the PAR key to enter Programming Mode. The meter briefly displays
followed by the first programming parameter described below.
PROGRAMMING MODE TIMEOUT
The Programming Mode has an automatic time out feature. If no keypad
activity is detected for approximately 60 seconds, the meter automatically exits
Programming Mode. The meter briefly displays and returns to the normal
display mode. When automatic timeout occurs, any changes that were made to
the parameter currently being programmed will not be saved.
PROGRAMMING PARAMETERS
In Programming Mode, the display alternates between the parameter and the
current selection or value for that parameter. The dual display with arrows is
used below to illustrate the alternating display. The selection choices or value
range for each parameter is shown to the right of the alternating display.

F
5191-717-767-6511
The meter has been fully calibrated at the factory. If the meter appears to be
indicating incorrectly or inaccurately, refer to the troubleshooting section before
attempting this procedure. When re-calibration is required (generally every 2
years), the procedure should only be performed by qualified technicians using
appropriate equipment. A precision thermometer (RTD, thermistor or similar
type with an accuracy of ±0.3° C) and an accurate voltage source (0.01%) are
required. The procedure consists of setting the cold junction temperature and
applying accurate voltages to the meter input in a series of three steps. Allow a
60-minute warm-up before starting calibration.
COLD JUNCTION TEMPERATURE CALIBRATION
1. Connect a calibrated thermocouple (types T, E, J, K or N only) to the panel
meter. Select the thermocouple type used in programming.
2. Connect the reference thermometer to the measuring end of the thermocouple.
The two probes should be shielded from air movement and allowed sufficient
time to equalize in temperature. (As an alternative, the PAXLTC thermocouple
probe may be placed in a calibration bath of known temperature.)
3. From the normal indicator display mode, compare the display temperature to
that of the reference thermometer. Allow 10 minutes for the temperature to
equalize. The meter and the reference thermometer should agree to within 1° F
(0.6° C).
4. If cold junction re-calibration is necessary (temperature out of tolerance), enter
meter calibration mode and enter access Code 48. The meter display will
alternate between and the old cold junction reading. At this point, key-in
the new cold junction temperature according to the formula:
WHERE:
New Cold Junction Reading = Old Cold Junction Reading + Difference
(Difference = Reference Thermometer Temperature - Meter Display Temperature)
5. Press PAR. The meter briefly displays to acknowledge the new cold
junction value.
VOLTAGE CALIBRATION
Following cold junction calibration, the display < > / appears.
Enter if input voltage calibration is desired. If is entered, the meter exits
calibration and returns to normal display mode.
The meter briefly displays End and returns to the normal display mode.
Calibration is now complete.
It is recommended to check calibration by selecting mV indication mode for
thermocouple type ( < > ) and verifying unit accuracy at various
points over the range of the meter (-10 to +80 mV).
The factory settings for the programming parameters are shown in the
previous section in the alternating display illustrations. All programming
parameters can be restored to the factory default settings by entering the access
Code 66 and pressing the PAR key. The meter briefly displays and then
returns to Code 50. This procedure resets only parameters that are accessed
through Programming Mode. The Calibration Mode settings (input calibration
levels) are not affected.
ª
«
UNITS LABEL BACKLIGHT
ª
«
to
ª
«
ª
«
PROGRAMMING MODE EXIT
FACTORY SETTINGS
CALIBRATION MODE
5.0 CALIBRATING THE METER
ª
«
DISPLAY PARAMETERS DESCRIPTION/COMMENT
0.000 mV Apply 0.000 mV, wait 20 seconds, press PAR.
30.000 mV Apply 30.000 mV, wait 20 seconds, press PAR.
60.000 mV Apply 60.000 mV, wait 20 seconds, press PAR.
The Units Label Kit Accessory contains a sheet of custom unit overlays,
which can be installed in the meter bezel display assembly. The unit of measure
for the meter display is then visible when the label backlight is illuminated. The
two most commonly used temperature unit labels (°F and °C) are supplied with
the meter. Press the up or down arrow keys to select whether the units label
backlight is illuminated. Press the PAR key to save the selection and advance
to the next parameter.
Before exiting Programming Mode, the meter offers the choice of entering
Calibration Mode. To exit Programming Mode without entering Calibration
Mode, select and press the PAR key. The meter briefly displays and
returns to the normal display mode. All programmed selections are now
transferred to non-volatile memory and are retained if power is removed from
the meter.
(If power loss occurs during Programming Mode, verify parameter changes
and reprogram, if necessary, when power is restored.)
To enter Calibration Mode, select < > at the end of Programming
Mode, and press the PAR key. In Calibration Mode, the user can restore the
meter to factory default settings or recalibrate the signal input if necessary.
To prevent inadvertent entries, an access code must be entered to perform any
operation in Calibration Mode. Upon entering Calibration Mode, the meter
initially displays Code 50. Press the up or down arrow keys to select the access
code for the desired operation. If an access code other than those shown below
is entered, the meter exits Calibration Mode and returns to normal display mode.
METER INPUT CALIBRATION

F
520 www.redlion.net
PROBLEM POSSIBLE CAUSE REMEDIES
NO DISPLAY 1a. Check wiring.
1b. Verify power.
“” IN DISPLAY 1. Program data error. 1. Press PAR and check data set-ups.
“ ” or “ ” IN DISPLAY
1. Input display out of range.
2. Loss of data set-ups.
DISPLAY WANDERS
1. Loss of data set-ups.
JITTERY DISPLAY
1a. Increase digital filtering.
1b. Re-route sensor wires.
2. Dampen process to eliminate oscillations.
3. Clean and tighten connections.
“” IN DISPLAY 1. Connect probe.
2. Repair or obtain new probe.
“” IN DISPLAY 1. Excessive positive probe temperature. 1. Reduce temperature.
“” IN DISPLAY 1. Excessive negative probe temperature. 1. Increase temperature.
1. Power off, improperly connected, or brown-out.
1a. Change display resolution to “1” degree.
1b. Reduce offset value.
2a. Check data set-ups.
2b. Check for electrical disturbance.
2c. Disconnect and reconnect power.
1a. Check data set-ups.
1b. Disconnect and reconnect power.
1c. Check for electrical disturbance.
1. Probe unconnected.
2. Broken or burnout probe.
TROUBLESHOOTING
The majority of all problems with the meter can be traced to improper connections or improper programming set-ups. Be sure all connections
are clean and tight and check the programming set-ups for correct data.
For further technical assistance, contact technical support at the appropriate company numbers listed.
1. Electrical “Noise” in process or sensor lines.
2. Process inherently unstable.
3. Corroded or dirty thermocouple wire connections.

F
5211-717-767-6511
ACCEPTS STANDARD 3-WIRE 100
Ω
RTD SENSORS (ALPHA =
0.00385 or ALPHA = 0.00392)
CONFORMS TO ITS-90 STANDARDS
SELECTABLE °F OR °C WITH 0.1 OR 1 DEGREE DISPLAY
RESOLUTION
STATE-OF-THE-ART DIGITAL ELECTRONICS FOR GREATER
ACCURACY AND RELIABILITY
FULL 4-DIGIT, HIGH VISIBILITY, 0.56" (14.2 mm) HIGH RED LED
DISPLAY
PROGRAMMABLE TEMPERATURE OFFSET
PROGRAMMABLE DIGITAL FILTERING
PEAK/VALLEY (HI/LO READING) MEMORY
NEMA 4X/IP65 SEALED FRONT BEZEL
CUSTOM UNITS OVERLAY WITH BACKLIGHT
GENERAL DESCRIPTION
The Pax Lite RTD Meter accepts standard RTD inputs and precisely linearizes
them into temperature readings. A full 4-digit display accommodates a wide
range of temperature inputs. State-of-the-art digital circuitry virtually eliminates
errors due to drift.
The meter features a readout choice of either Fahrenheit or Celsius with 0.1 or
1 degree resolution. English Style display prompts and front panel buttons aid the
operator through set-up and operation. Programmable digital filtering enhances
the stability of the reading. All set-up data is stored in EEPROM, which will hold
data for a minimum of 10 years without power.
The meter provides a Peak (HI) and Valley (LO) reading memory with
selectable capture delay time. The capture delay is used to prevent detection of
false Peak or Valley readings that may occur during start-up or unusual process
events. The Peak and Valley readings are stored at power-down to allow
monitoring the process limits over any length of time (shifts, days, etc.).
The meter has several built-in diagnostic functions to alert operators of any
malfunction. Extensive testing of noise interference mechanisms and full burn-
in makes the meter extremely reliable in industrial environments. The front bezel
meets NEMA 4X/IP65 requirements for wash down applications.
SAFETY SUMMARY
All safety related regulations, local codes and instructions that appear in the
literature or on equipment must be observed to ensure personal safety and to
prevent damage to either the instrument or equipment connected to it. If
equipment is used in a manner not specified by the manufacturer, the protection
provided by the equipment may be impaired. Do not use this unit to directly
command motors, valves, or other actuators not equipped with safeguards. To
do so, can be potentially harmful to persons or equipment in the event of a fault
to the unit.
DEFINITION OF TERMS
INSTALLATION CATEGORY (overvoltage category) I:
Signal level, special equipment or parts of equipment, telecommunication,
electronic, etc. with smaller transient overvoltages than Installation
Category (overvoltage category) II.
INSTALLATION CATEGORY (overvoltage category) II:
Local level, appliances, portable equipment, etc. with smaller transient
overvoltages than Installation Category (overvoltage category) III.
MODEL PAXLRT - PAX LITE RTD METER
CAUTION: Risk of Danger
Read complete instructions prior to
installation and operation of the unit.
CAUTION: Risk of electric shock.
DIMENSIONS In inches (mm) Note: Recommended minimum clearance (behind the panel) for mounting clip installation is
2.1" (53.4) H x 5" (127) W.
C
C
US LISTED
US LISTED
UL
R
IND. CONT. EQ.
51EB

F
522 www.redlion.net
ORDERING INFORMATION
Meter Part Numbers
Ordering Information . . . . . . . . . . . . . . . . . . . 2
General Meter Specifications. . . . . . . . . . . . . 3
Accessories . . . . . . . . . . . . . . . . . . . . . . . . . 3
Installing the Meter . . . . . . . . . . . . . . . . . . . . 4
Wiring the Meter . . . . . . . . . . . . . . . . . . . . . . 4
Reviewing the Front Buttons and Display . . . 5
Programming the Meter . . . . . . . . . . . . . . . . 6
Calibrating the Meter. . . . . . . . . . . . . . . . . . . 7
Troubleshooting . . . . . . . . . . . . . . . . . . . . . . 7
TABLE OF CONTENTS
PAXL 0
0
RT - RTD Temperature Meter
RT
Accessories Part Numbers*
MODEL NO. DESCRIPTION PART NUMBERS
Accessories
TYPE
PAXLBK Units Label Kit Accessory PAXLBK30
*This meter is shipped with °F and °C overlay labels. The label kit is only
needed if another units label is desired.

F
5231-717-767-6511
GENERAL METER SPECIFICATIONS
1. DISPLAY: 4-digit, 0.56" (14.2 mm) high LED, minus sign displayed for
negative temperatures.
Overrange/Underrange Input: Flashing “” or “”
Overrange/Underrange Display: “ ” or “ ”
2. POWER: 85 to 250 VAC, 50/60 Hz, 6 VA
Isolation: 2300 Vrms for 1 min. between input and supply (300 V working
voltage)
3. CONTROLS: Three front panel push buttons for meter set-up. Rear terminal
input for disabling the front panel.
4. RESOLUTION: 0.1 or 1 degree
5. RANGE: Decimal Point Dependent
0.1° res: -199.9° to 850.0 °C (-199.9° to 999.9 °F);
1° res: -200° to 850 °C (-328° to 1562 °F)
6. OPEN/SHORTED RTD DETECTION: Display flashes: “” or “”
7. LEAD RESISTANCE EFFECT: 20 Ωmax., 2.5 °C/Ωerror for V exc. and
common lead unbalance
8. ACCURACY: 0.3 °C, @ 23 °C and 30 min. warm-up
9. READING RATE: 2.5 readings/second
10. RESPONSE TIME: 2 seconds to settle for step input (increases with
programmable digital filtering)
11. LOW FREQUENCY NOISE REJECTION:
Normal Mode Rejection: 40 dB @ 50/60 Hz (may be improved by
programmable digital filtering)
Common Mode Rejection: 120 dB, DC to 50/60 Hz
12. CERTIFICATIONS AND COMPLIANCES:
SAFETY
UL Recognized Component, File # E179259, UL61010-1, CSA C22.2 No. 61010-1
Recognized to U.S. and Canadian requirements under the Component
Recognition Program of Underwriters Laboratories, Inc.
UL Listed, File # E137808, UL508, CSA C22.2 No. 14-M95
LISTED by Und. Lab. Inc. to U.S. and Canadian safety standards
Type 4X Enclosure rating (Face only), UL50
IECEE CB Scheme Test Certificate # US/8843A/UL
CB Scheme Test Report # 04ME11209-20041018
Issued by Underwriters Laboratories, Inc.
IEC 61010-1, EN 61010-1: Safety requirements for electrical equipment
for measurement, control, and laboratory use, Part 1.
IP65 Enclosure rating (Face only), IEC 529
ELECTROMAGNETIC COMPATIBILITY
Emissions and Immunity to EN 61326: Electrical Equipment for
Measurement, Control and Laboratory use.
Note:
1. Criterion A: Normal operation within specified limits.
13. ENVIRONMENTAL CONDITIONS:
Operating Temperature Range: 0 to 50 °C
Storage Temperature Range: -40 to 80 °C
Operating and Storage Humidity: 85% max (non-condensing) from 0 to
50 °C
Span Drift: 50 ppm/ °C
Zero Drift: 0.001 °C/°C
Altitude: Up to 2000 meters.
14. CONSTRUCTION: This unit is rated for NEMA 4X/IP65 indoor use. One
piece bezel/case. Flame resistant. Panel gasket and mounting clip included.
15. CONNECTIONS: High compression cage-clamp terminal block
Wire Strip Length: 0.3" (7.5 mm)
Wire Gage: 30-14 AWG copper wire
Torque: 4.5 inch-lbs (0.51 N-m) max.
16. WEIGHT: 0.65 lbs. (0.24 Kg)
Class BEN 55011Emissions
Emissions:
0.5 cycle
Criterion AEN 61000-4-11Voltage dip/interruptions
3 V/rms
Criterion AEN 61000-4-6RF conducted interference
1 kV signal
1 kV L-L,
Criterion AEN 61000-4-5Surge
2 kV signal
2 kV power
Criterion AEN 61000-4-4Fast transients (burst)
2 kV L&N-E power
10 V/m
Criterion AEN 61000-4-3Electromagnetic RF fields
8 kV air discharge
4 kV contact discharge
Criterion AEN 61000-4-2Electrostatic discharge
Immunity:
ACCESSORIES
UNITS LABEL KIT (PAXLBK)
Each meter has a units indicator with backlighting that can be customized using
the Units Label Kit. The backlight is controlled in the programming.
Each meter is shipped with °F and °C overlay labels which can be installed into
the meter’s bezel display assembly.

F
524 www.redlion.net
2.0 WIRING THE METER
1.0 INSTALLING THE METER
Installation
The PAX meets NEMA 4X/IP65 requirements when properly installed. The
unit is intended to be mounted into an enclosed panel. Prepare the panel cutout
to the dimensions shown. Remove the panel latch from the unit. Slide the panel
gasket over the rear of the unit to the back
of the bezel. The unit should be
installed fully assembled. Insert the
unit into the panel cutout.
While holding the unit in place, push the panel latch over the rear of the unit
so that the tabs of the panel latch engage in the slots on the case. The panel latch
should be engaged in the farthest forward slot possible. To achieve a proper seal,
tighten the latch screws evenly until the unit is snug in the panel (Torque to
approximately 7 in-lbs [79N-cm]). Do not over-tighten the screws.
Installation Environment
The unit should be installed in a location that does not exceed the maximum
operating temperature and provides good air circulation. Placing the unit near
devices that generate excessive heat should be avoided.
The bezel should be cleaned only with a soft cloth and neutral soap product.
Do NOT use solvents. Continuous exposure to direct sunlight may accelerate the
aging process of the bezel.
Do not use tools of any kind (screwdrivers, pens, pencils, etc.) to operate the
keypad of the unit.
PANEL CUT-OUT
POWER WIRING
Primary AC power is connected to Terminals 1 and 2. To reduce the chance of
noise spikes entering the AC line and affecting the indicator, the AC power should
be relatively “clean” and within the specified limits. Drawing power from heavily
loaded circuits or circuits that also power loads that cycle on and off (contactors,
relays, motors, machinery, etc.) should be avoided.
SIGNAL WIRING (RTD SENSOR)
RTD sensors are used in applications where a high degree of accuracy is
required. Most RTD sensors available are the 3-wire type. The 3rd additional
wire is a sense lead for canceling the effects of lead resistance at the probe. The
sense lead connects to Terminal 5 (RTD+), the common lead to Terminal 6
(RTD-), and the excitation lead to Terminal 4 (+ Excitation). The excitation and
sense leads are generally the same color because they are functionally the same
and may be interchanged at the meter. Four wire sensors have an additional
sense lead connected (at the probe) to the common lead. Leave the extra sense
lead disconnected when using a four wire probe with the PAXLRT meter.
Always refer to the sensor manufacturer’s instructions for probe wiring
connections, if available. Two wire RTD sensors may be used with the PAXLRT
by shorting Terminal 4 to Terminal 5, if the distance between sensor and meter
is less than 30 feet. The total lead resistance can be used to predict the
temperature error for 2-wire sensors, according to 2.5°C/Ω of lead resistance.
Note: Extended cable runs can be made provided the lead resistance is less
than 20
Ω
/lead and the resistance is equal in each lead.
PROGRAM DISABLE INPUT WIRING
PGM.DIS. (Terminal 3) is a digital input that is active when connected to RTD-
(Terminal 6). Any form of mechanical switch or current sinking logic with less
than 0.7 V saturation may be used. The use of shielded cable is recommended.
Follow the EMC Installation Guidelines for shield connection.
WIRING OVERVIEW
Electrical connections are made via screw-clamp terminals located on the
back of the meter. All conductors should conform to the meter’s voltage and
current ratings. All cabling should conform to appropriate standards of good
installation, local codes and regulations. It is recommended that the power
supplied to the meter be protected by a fuse or circuit breaker.
When wiring the meter, compare the numbers embossed on the back of the
meter case against those shown in wiring drawings for proper wire position. Strip
the wire, leaving approximately 0.3" (7.5 mm) bare lead exposed (stranded wires
should be tinned with solder). Insert the lead under the correct screw-clamp
terminal and tighten until the wire is secure. (Pull wire to verify tightness.)
AC Power
Terminal 1: VAC
Terminal 2: VAC
3-Wire RTD 2-Wire RTD

F
5251-717-767-6511
EMC INSTALLATION GUIDELINES
Although this meter is designed with a high degree of immunity to Electro-
Magnetic Interference (EMI), proper installation and wiring methods must be
followed to ensure compatibility in each application. The type of the electrical
noise, source or coupling method into the meter may be different for various
installations. The meter becomes more immune to EMI with fewer I/O
connections. Cable length, routing, and shield termination are very important
and can mean the difference between a successful or troublesome installation.
Listed below are some EMC guidelines for successful installation in an
industrial environment.
1. The meter should be mounted in a metal enclosure, which is properly
connected to protective earth.
2. Use shielded (screened) cables for all Signal and Control inputs. The shield
(screen) pigtail connection should be made as short as possible. The
connection point for the shield depends somewhat upon the application.
Listed below are the recommended methods of connecting the shield, in order
of their effectiveness.
a. Connect the shield only at the panel where the unit is mounted to earth
ground (protective earth).
b. Connect the shield to earth ground at both ends of the cable, usually when
the noise source frequency is above 1 MHz.
c. Connect the shield to common of the meter and leave the other end of the
shield unconnected and insulated from earth ground.
3. Never run Signal or Control cables in the same conduit or raceway with AC
power lines, conductors feeding motors, solenoids, SCR controls, and
heaters, etc. The cables should be run in metal conduit that is properly
grounded. This is especially useful in applications where cable runs are long
and portable two-way radios are used in close proximity or if the installation
is near a commercial radio transmitter.
4. Signal or Control cables within an enclosure should be routed as far as possible
from contactors, control relays, transformers, and other noisy components.
5. In extremely high EMI environments, the use of external EMI suppression
devices, such as ferrite suppression cores, is effective. Install them on Signal
and Control cables as close to the unit as possible. Loop the cable through the
core several times or use multiple cores on each cable for additional protection.
Install line filters on the power input cable to the unit to suppress power line
interference. Install them near the power entry point of the enclosure. The
following EMI suppression devices (or equivalent) are recommended:
Ferrite Suppression Cores for signal and control cables:
Fair-Rite # 0443167251 (RLC# FCOR0000)
TDK # ZCAT3035-1330A
Steward # 28B2029-0A0
Line Filters for input power cables:
Schaffner # FN610-1/07 (RLC# LFIL0000)
Schaffner # FN670-1.8/07
Corcom # 1 VR3
Note: Reference manufacturer’s instructions when installing a line filter.
6. Long cable runs are more susceptible to EMI pickup than short cable runs.
Therefore, keep cable runs as short as possible.
3.0 REVIEWING THE FRONT BUTTONS AND DISPLAY
Display Valley (LO) Reading
T
Display Peak (HI) Reading
S
PAR
PROGRAMMING MODE OPERATIONDISPLAY MODE OPERATIONKEY
Store selected parameter and index to next parameter
Increment value or change selection
Decrement value or change selection
Access Programming Mode or Display Input Reading
PEAK/VALLEY DETECTION
The meter will automatically record the highest input reading (peak) and the
lowest input reading (valley) for later recall. These values are stored at power-
down to allow monitoring the process limits over any length of time (shifts, days,
etc.). A selectable capture delay time is used to prevent detection of false peak or
valley readings caused by sudden short spikes or unusual process events.
The peak and valley readings can be viewed and reset using the front panel
keys as described below.
View Peak, Valley and Input readings:
To view Peak, press S. Meter displays followed by the Peak reading.
To view Valley, press T. Meter displays followed by the Valley reading.
To view Input, press PAR. Meter displays followed by the current
Input reading.
Note: The decimal point to the right of digit 1 flashes while the peak or valley
reading is displayed.
Reset Peak and/or Valley to the current Input reading:
To reset Peak and Valley, press Sand Tsimultaneously.
To reset Peak only, press and hold Sthen press PAR.
To reset Valley only, press and hold Tthen press PAR.
In each case, the meter displays followed by the current Input reading.

F
526 www.redlion.net
The RTD Meter has seven programmable parameters that are entered in the
sequence shown above, using the front panel push buttons.
The last programming step offers the choice of entering calibration mode.
From this mode, the user can restore the meter to factory default settings or
recalibrate the signal input if necessary. To prevent inadvertent entries, an access
code must be keyed-in to perform any operations in calibration mode.
Note: Programming mode can be locked out using the Program Disable input
terminal. With the PGM.DIS. terminal connected to RTD-, the meter displays
“” when the PAR key is pressed, and will not enter programming mode.
PROGRAMMING MODE ENTRY
Press the PAR key to enter Programming Mode. The meter briefly displays
followed by the first programming parameter described below.
PROGRAMMING MODE TIMEOUT
The Programming Mode has an automatic timeout feature. If no keypad
activity is detected for approximately 60 seconds, the meter automatically exits
Programming Mode. The meter briefly displays and returns to the normal
display mode. When automatic timeout occurs, any changes that were made to
the parameter currently being programmed will not be saved.
PROGRAMMING PARAMETERS
In Programming Mode, the display alternates between the parameter and the
current selection or value for that parameter. The dual display with arrows is
used below to illustrate the alternating display. The selection choices or value
range for each parameter is shown to the right of the alternating display.
Select the RTD type by pressing the up or down arrow keys (or ). When
the desired selection is displayed, press the PAR key to save the selection and
advance to the next parameter.
Select the desired temperature scale by pressing the up or down arrow keys.
This setting does not change the Custom Units Overlay display (if installed).
Press the PAR key to save the selection and advance to the next parameter.
Select the decimal point position by pressing the up or down arrow keys. This
sets the display resolution to 1 or 0.1 degree. Press the PAR key to save the
selection and advance to the next parameter.
The temperature display can be corrected with an offset
value. This can be used to compensate for probe errors or errors due to variances
in probe placement, or to adjust the readout to a reference thermometer. Set the
desired display offset value by pressing (and/or holding) the up or down arrow
keys. When the desired offset value is displayed, press the PAR key to save the
selection and advance to the next parameter. The display resolution for the offset
value is the same as the decimal point position programmed above.
This parameter sets the amount of digital filtering
applied to the input signal. If the temperature display is difficult to read due to
small variations or noise, increased levels of filtering will help to stabilize the
display. Although the digital filter features a “moving window” to help minimize
response time, higher levels of filtering will result in slightly longer response
times.
Set the desired level of input filtering by pressing the up or down arrow keys.
Press the PAR key to save the selection and advance to the next parameter.
When the Input display is above the present HI value or below the present LO
value for the entered delay time, the meter will capture the Input display as the
new HI or LO reading. A delay time helps to avoid false captures of sudden short
spikes or Input display variations that may occur during start-up.
Set the desired capture delay time by pressing the up or down arrow keys.
Press the PAR key to save the selection and advance to the next parameter.
The Units Label Kit Accessory contains a sheet of custom unit overlays,
which can be installed in the meter bezel display assembly. The unit of measure
for the meter display is then visible when the label backlight is illuminated. The
two most commonly used temperature unit labels (°F and °C) are supplied with
the meter. Press the up or down arrow keys to select whether the units label
backlight is illuminated. Press the PAR key to save the selection and advance to
the next parameter.
Before exiting Programming Mode, The meter offers the choice of entering
Calibration Mode. To exit Programming Mode without entering Calibration
Mode, select and press the PAR key. The meter briefly displays and
returns to the normal display mode. All programmed selections are now
transferred to non-volatile memory and are retained if power is removed from
the meter.
(If power loss occurs during Programming Mode, verify parameter changes
and reprogram, if necessary, when power is restored.)
ª
«
- normal filtering - maximum filtering
ª
«
ª
«
UNITS LABEL BACKLIGHT
DECIMAL POINT POSITION
TEMPERATURE DISPLAY OFFSET
ª
«
DIGITAL FILTERING
4.0 PROGRAMMING THE METER
PROGRAMMING SEQUENCE
RTD TYPE
TEMPERATURE SCALE
ª
«
¶
ª
«
0
to
- no digital filtering - increased filtering
ª
«
PROGRAMMING MODE EXIT
PEAK (HI)/ VALLEY (LO) CAPTURE DELAY TIME
ª
«
seconds

F
5271-717-767-6511
To enter Calibration Mode, select < > at the end of Programming
Mode, and press the PAR key. In Calibration Mode, the user can restore the
meter to factory default settings or recalibrate the signal input if necessary.
To prevent inadvertent entries, an access code must be entered to perform any
operation in Calibration Mode. Upon entering Calibration Mode, the meter
initially displays Code 50. Press the up or down arrow keys to select the access
code for the desired operation. If an access code other than those shown below
is entered, the meter exits Calibration Mode and returns to normal display mode.
The factory settings for the programming parameters are shown in the
previous section in the alternating display illustrations. All programming
parameters can be restored to the factory default settings by entering the access
Code 66 and pressing the PAR key. The meter briefly displays and then
returns to Code 50. This procedure resets only parameters that are accessed
through Programming Mode. The Calibration Mode settings (input calibration
levels) are not affected.
The meter has been fully calibrated at the factory. If the meter appears to be
indicating incorrectly or inaccurately, refer to the troubleshooting section
before attempting this procedure. When re-calibration is required (generally
every 2 years), the procedure should only be performed by qualified
technicians using appropriate equipment. Resistance source accuracies of
0.02% or better are required.
The procedure consists of applying accurate signal levels to the meter input
in a series of two steps. Allow a 30-minute warm-up period before starting
calibration. To begin the input calibration, enter access Code 48 and press the
PAR key.
ENTER ZERO REFERENCE
Meter displays . Apply 0 ohms to the meter input by shorting Terminals 4,
5, and 6. Allow the meter to stabilize at least 20 seconds after shorting the
terminals, and then press PAR.
APPLY PRECISION RESISTANCE
Meter displays . Connect a precision 300 ohm resistor across Terminals
5 and 6. Terminals 4 and 5 remain shorted. (Note: Be certain to short Terminals
4 and 5 at the resistor as shown in the drawing below. Shorting terminals may
lead to incorrect calibration.)
Allow the meter to stabilize at least 20 seconds after making the connections,
and then press PAR. The meter briefly displays and returns to the normal
display mode. Calibration is now complete. It is recommended to check
calibration by comparing the displayed temperature with a precision thermometer.
to
ª
«
ª
«
ª
«
TROUBLESHOOTING
The majority of all problems with the meter can be traced to improper connections or improper programming set-ups. Be sure all connections are
clean and tight and check the programming set-ups for correct data.
For further technical assistance, contact technical support at the appropriate company numbers listed.
CALIBRATION MODE
FACTORY SETTINGS
METER INPUT CALIBRATION
5.0 CALIBRATING THE METER
PROBLEM POSSIBLE CAUSE REMEDIES
NO DISPLAY 1. Power off, improperly connected, or brown-out.
“” IN DISPLAY 1. Program data error. 1. Press PAR and check data set-ups.
“ ” or “ ” IN DISPLAY 1. Input display out of range.
2. Loss of data set-ups.
DISPLAY WANDERS 1. Loss of data set-ups.
1. Electrical “Noise” in process or sensor lines.
2. Process inherently unstable.
“” IN DISPLAY 1. Connect probe.
2. Repair or obtain new probe.
3. Reduce temperature.
4. Check input levels.
“” IN DISPLAY 1. Input shorted. 1. Check input connections.
1a. Check data set-ups.
1b. Disconnect and reconnect power.
1c. Check for electrical disturbance.
1a. Check wiring.
1b. Verify power.
1a. Change display resolution to “1” degree.
1b. Reduce offset value.
2a. Check data set-ups.
2b. Check for electrical disturbance.
2c. Disconnect and reconnect power.
1a. Increase digital filtering.
1b. Re-route signal wires.
2. Dampen process to eliminate oscillations.
1. Probe unconnencted.
2. Broken or burnout probe.
3. Excessive probe temperature.
4. Input overload.
JITTERY DISPLAY

F
528 www.redlion.net
z5 DIGIT, 0.56" HIGH RED LED DISPLAY
zDISPLAYS °C OR °F WITH 1° OR 0.1° RESOLUTION
zBACKLIGHT OVERLAYS INCLUDED (°C AND °F)
zMAX AND MIN READING MEMORY
zTC COLD JUNCTION COMPENSATION (ON/OFF)
zPROGRAMMABLE TEMPERATURE OFFSET
zPROGRAMMABLE USER INPUT
zDUAL 5 AMP FORM C RELAYS
zUNIVERSALLY POWERED
zNEMA 4X/IP65 SEALED FRONT BEZEL
GENERAL DESCRIPTION
The PAXLT is a versatile meter that accepts a variety of thermocouple and
RTD inputs and provides a temperature display in Celsius or Fahrenheit. The
readout conforms to ITS-90 standards, with 1° or 0.1° resolution. The 5-digit
display has 0.56" high digits with adjustable intensity. Backlight overlay labels
for °F and °C are included.
The meter features a Maximum and Minimum reading memory, with
programmable capture time. The capture time is used to prevent detection of
false max or min readings which may occur during start-up or unusual process
events. Either value can be displayed if desired. The display can be toggled
manually or automatically between the selected values.
Other features include thermocouple cold junction compensation, display
offset and a programmable user input to perform a variety of meter control
functions. Two setpoint outputs are provided, each with a Form C relay. Output
modes and setup options are fully programmable to suit a variety of control
requirements.
The PAXLT can be universally powered from a wide range of AC or DC
voltage. The meter has been specifically designed for harsh industrial
environments. With a NEMA 4X/IP65 sealed bezel and extensive testing to meet
CE requirements, the meter provides a tough yet reliable application solution.
SAFETY SUMMARY
All safety regulations, local codes and instructions that appear in this and
corresponding literature, or on equipment, must be observed to ensure personal
safety and to prevent damage to either the instrument or equipment connected to
it. If equipment is used in a manner not specified by the manufacturer, the
protection provided by the equipment may be impaired.
Do not use this meter to directly command motors, valves, or other actuators
not equipped with safeguards. To do so can be potentially harmful to persons or
equipment in the event of a fault to the meter
SPECIFICATIONS
1. DISPLAY: 5 digit, 0.56" (14.2 mm) intensity adjustable Red LED
2. POWER REQUIREMENTS:
AC POWER: 50 to 250 VAC 50/60 Hz, 12 VA
Isolation: 2300 Vrms for 1 min. to all inputs and outputs
DC POWER: 21.6 to 250 VDC, 6 W
DC Out: +24 VDC @ 100 mA if input voltage is greater than 50 VAC/VDC
+24 VDC @ 50 mA if input voltage is less than 50 VDC
3. READOUT:
Display Range: -19999 to 99999
Scale: °F or °C
Resolution: 1° or 0.1°
Response Time: 500 msec min.
Display Overrange/Underrange Indication: "….." / "-…."
Input Overrange/Underrange Indication: /
4. THERMOCOUPLE INPUTS:
Input Impedance: 20 MΩ
Max. Continuous Overvoltage: 30 VDC
zTHERMOCOUPLE AND RTD INPUTS
zCONFORMS TO ITS-90 STANDARDS
MODEL PAXLT - PAX LITE TEMPERATURE METER
DIMENSIONS In inches (mm)
CAUTION: Risk of Danger.
Read complete instructions prior to
installation and operation of the unit.
CAUTION: Risk of electric shock.
ORDERING INFORMATION
MODEL NO. DESCRIPTION PART NUMBER
PAXLT000PAXLT
Note: Recommended minimum clearance (behind the panel) for mounting clip installation is
2.1" (53.4) H x 5.0" (127) W.
TC/RTD Temperature Meter with dual Relay Output

F
5291-717-767-6511
Failed Sensor Indication:
*After 20 min. warm-up. Accuracy is specified in two ways: Accuracy at
23°C and 15 to 75% RH environment; and Accuracy over a 0 to 50°C and 0 to
85% RH (non condensing) environment. Accuracy specified over the 0 to 50°C
operating range includes meter tempco and cold junction tracking effects.
The specification includes the A/D conversion errors, linearization
conformity, and thermocouple cold junction compensation. Total system
accuracy is the sum of meter and probe errors. Accuracy may be improved by
field calibrating the meter readout at the temperature of interest.
5. RTD INPUTS:
Type: 2, 3 or 4 wire
Excitation Current:
100 ohm range: 165 μA; 10 ohm range: 2.5 mA
Lead Resistance:
100 ohm range: 10 Ω/lead max.; 10 ohm range: 3 Ω/lead max.
Balanced Lead Resistance: Automatically compensated up to max per lead
Unbalanced Lead Resistance: Uncompensated
Max. Continuous Overvoltage: 30 VDC
Failed Sensor Indication: or
*After 20 min. warm-up. Accuracy is specified in two ways: Accuracy at
23°C and 15 to 75% RH environment; and Accuracy over a 0 to 50°C and 0 to
85% RH (non condensing) environment. Accuracy specified over the 0 to 50°C
operating range includes meter tempco effects.
The specification includes the A/D conversion errors and linearization
conformity. Total system accuracy is the sum of meter and probe errors.
Accuracy may be improved by field calibrating the meter readout at the
temperature of interest.
6. USER INPUT: Programmable input
Software selectable for active logic state: active low, pull-up (24.7 KΩto +5
VDC) or active high, pull-down resistor (20 KΩ).
Trigger levels: VIL = 1.0 V max; VIH = 2.4 V min; VMAX = 28 VDC
Response Time: 10 msec typ.; 50 msec debounce (activation and release)
7. MEMORY: Nonvolatile E2PROM retains all programming parameters and
max/min values when power is removed.
8. OUTPUTS:
Type: Dual Form C contacts
Isolation to Sensor & User Input Commons: 1400 Vrms for 1 min.
Working Voltage: 150 Vrms
Contact Rating: 5 amps @ 120/240 VAC or 28 VDC (resistive load), 1/8
H.P. @ 120 VAC (inductive load)
Life Expectancy: 100 K cycles min. at full load rating. External RC snubber
extends relay life for operation with inductive loads.
Response Time: Turn On or Off: 4 msec max.
9. ENVIRONMENTAL CONDITIONS:
Operating temperature: 0 to 50 °C
Storage temperature: -40 to 70 °C
Operating and storage humidity: 0 to 85% max. RH (non-condensing)
Altitude: Up to 2,000 meters
10. CONNECTIONS: High compression cage-clamp terminal block
Wire Strip Length: 0.3" (7.5 mm)
Wire Gage: 30-14 AWG copper wire
Torque: 4.5 inch-lbs (0.51 N-m) max.
11. CONSTRUCTION: This unit is rated for NEMA 4X/IP65 outdoor use. IP20
Touch safe. Installation Category II, Pollution Degree 2. One piece
bezel/case. Flame resistant. Synthetic rubber keypad. Panel gasket and
mounting clip included.
12. CERTIFICATIONS AND COMPLIANCES:
Consult Factory.
13. WEIGHT: 10.4 oz. (295 g)
Installation
The PAX Lite meets NEMA 4X/IP65 requirements when properly installed.
The unit is intended to be mounted into an enclosed panel. Prepare the panel
cutout to the dimensions shown. Remove the panel latch from the unit. Slide the
panel gasket over the rear of the unit to the back of the bezel. The unit should be
installed fully assembled. Insert the unit into the panel cutout.
While holding the unit in place, push the panel latch over the rear of the unit
so that the tabs of the panel latch engage in the slots on the case. The panel latch
should be engaged in the farthest forward slot
possible. To achieve a proper seal, tighten
the latch screws evenly until the unit
is snug in the panel (Torque to
approximately 7 in-lbs [79N-cm]).
Do not over-tighten the screws.
Installation Environment
The unit should be installed in a location that does not exceed the maximum
operating temperature and provides good air circulation. Placing the unit near
devices that generate excessive heat should be avoided.
The bezel should be cleaned only with a soft cloth and neutral soap product.
Do NOT use solvents. Continuous exposure to direct sunlight may accelerate the
aging process of the bezel.
Do not use tools of any kind (screwdrivers, pens, pencils, etc.) to operate the
keypad of the unit.
1.0 INSTALLING THE METER
PANEL CUT-OUT
TC TYPE RANGE
ACCURACY
@ 23°C
±°C *
WIRE COLOR
5.8
4.3
15.0
ANSI BS 1843
T-200 to 400°C
-328 to 752°F 2.3 (+) blue
(-) red
(+) white
(-) blue
J-200 to 760°C
-328 to 1400°F 1.9 (+) white
(-) red
(+) yellow
(-) blue
R-50 to 1768°C
-58 to 3214°F 4.5 no
standard
(+) white
(-) blue
S-50 to 1768°C
-58 to 3214°F 4.5 no
standard
(+) white
(-) blue
B200 to 1820°C
392 to 3308°F
9.1<540°C
4.5>540°C
no
standard
no
standard
E-200 to 871°C
-328 to 1600°F 2.7 (+) purple
(-) red
(+) brown
(-) blue
N-200 to 1300°C
-328 to 2372°F 2.8 (+) orange
(-) red
(+) orange
(-) blue
K-200 to 1372°C
-328 to 2502°F 2.3 (+) yellow
(-) red
(+) brown
(-) blue
mV
C
(W5/W26)
-10.00 to 65.00
0 to 2315°C
32 to 4199°F
0.02 mV
1.9
no
standard
no
standard
no
standard
no
standard
15.0
42.6<540°C
15.0>540°C
4.9
8.1
5.8
0.08 mV
6.1
ACCURACY
@ 0 to 50°C
±°C *
STANDARD
ACCURACY*
@0 to 50°C
ACCURACY*
@ 23°C
RANGE
no official
standard
0.9°C0.4°C-100 to 260°C
10 ohm Copper
alpha = .00427
RTD TYPE
no official
standard
0.5°C0.2°C-80 to 260°C
120 ohm Nickel
alpha = .00672
no official
standard
1.6°C0.4°C-200 to 850°C
100 ohm Pt
alpha = .00392
IEC 7511.6°C0.4°C-200 to 850°C
100 ohm Pt
alpha = .00385

F
530 www.redlion.net
3.0 WIRING THE METER
WIRING OVERVIEW
Electrical connections are made via screw-clamp terminals located on the
back of the meter. All conductors should conform to the meter’s voltage and
current ratings. All cabling should conform to appropriate standards of good
installation, local codes and regulations. It is recommended that the power
supplied to the meter (DC or AC) be protected by a fuse or circuit breaker.
When wiring the meter, compare the numbers embossed on the back of the
meter case against those shown in wiring drawings for proper wire position. Strip
the wire, leaving approximately 0.3" (7.5 mm) bare lead exposed (stranded wires
should be tinned with solder.) Insert the lead under the correct screw-clamp
terminal and tighten until the wire is secure. (Pull wire to verify tightness.)
EMC INSTALLATION GUIDELINES
Although this meter is designed with a high degree of immunity to Electro-
Magnetic Interference (EMI), proper installation and wiring methods must be
followed to ensure compatibility in each application. The type of the electrical
noise, source or coupling method into the meter may be different for various
installations. The meter becomes more immune to EMI with fewer I/O
connections. Cable length, routing, and shield termination are very important
and can mean the difference between a successful or troublesome installation.
Listed below are some EMC guidelines for successful installation in an
industrial environment.
1. The meter should be properly connected to protective earth.
2. Use shielded (screened) cables for all Signal and Control inputs. The shield
(screen) pigtail connection should be made as short as possible. The
connection point for the shield depends somewhat upon the application.
Listed below are the recommended methods of connecting the shield, in order
of their effectiveness.
a. Connect the shield only at the panel where the unit is mounted to earth
ground (protective earth).
b. Connect the shield to earth ground at both ends of the cable, usually when
the noise source frequency is above 1 MHz.
c. Connect the shield to common of the meter and leave the other end of the
shield unconnected and insulated from earth ground.
3. Never run Signal or Control cables in the same conduit or raceway with AC
power lines, conductors feeding motors, solenoids, SCR controls, and
heaters, etc. The cables should be ran in metal conduit that is properly
grounded. This is especially useful in applications where cable runs are long
and portable two-way radios are used in close proximity or if the installation
is near a commercial radio transmitter.
4. Signal or Control cables within an enclosure should be routed as far as possible
from contactors, control relays, transformers, and other noisy components.
5. In extremely high EMI environments, the use of external EMI suppression
devices, such as ferrite suppression cores, is effective. Install them on Signal
and Control cables as close to the unit as possible. Loop the cable through the
core several times or use multiple cores on each cable for additional protection.
Install line filters on the power input cable to the unit to suppress power line
interference. Install them near the power entry point of the enclosure. The
following EMI suppression devices (or equivalent) are recommended:
Ferrite Suppression Cores for signal and control cables:
Fair-Rite # 0443167251 (RLC# FCOR0000)
TDK # ZCAT3035-1330A
Steward # 28B2029-0A0
Line Filters for input power cables:
Schaffner # FN610-1/07 (RLC# LFIL0000)
Schaffner # FN670-1.8/07
Corcom # 1 VR3
Note: Reference manufacturer's instructions when installing a line filter.
6. Long cable runs are more susceptible to EMI pickup than short cable runs.
Therefore, keep cable runs as short as possible.
7. Switching of inductive loads produces high EMI. Use of snubbers across
inductive loads suppresses EMI.
Snubber: RLC# SNUB0000.
2.0 SETTING THE JUMPER
INPUT RANGE JUMPER (RTD ONLY)
This jumper is used to select the proper input range for the RTD probe being
used (10 ohm or 100 ohm). For thermocouple inputs, this jumper has no effect
and can be left in either position.
To access the jumper, remove the meter base from the case by firmly
squeezing and pulling back on the side rear finger tabs. This should lower the
latch below the case slot (which is located just in front of the finger tabs). It is
recommended to release the latch on one side, then start on the other side latch.
Main
Circuit
Board
REAR TERMINALS
FRONT DISPLAY
RTD RANGE
JUMPER
10 OHM 100 OHM

F
5311-717-767-6511
3.3 USER INPUT WIRING
CAUTION: Sensor input common (Terminal 7) is NOT isolated from user common (Terminal 9). In order to preserve the safety
of the meter application, the sensor input common must be suitably isolated from hazardous live earth referenced voltages;
or input common and user common must be at protective earth ground potential. If not, hazardous live voltage may be
present at the user input and user common terminals. Appropriate considerations must then be given to the potential of the
sensor input common and the user common with respect to earth ground.
Terminal 8: User Input
Terminal 9: User Common
3.4 SETPOINT (OUTPUT) WIRING
Terminal 10: NC 1
Terminal 11: NO 1
Terminal 12: Relay 1 Common
Terminal 13: NC 2
Terminal 14: NO 2
Terminal 15: Relay 2 Common
Current Sinking (Active Low Logic)
Current Sourcing (Active High Logic)
3.2 INPUT SIGNAL WIRING
3.1 POWER WIRING
Power
Terminal 1: VAC/DC +
Terminal 2: VAC/DC -
THERMOCOUPLE 2-WIRE RTD 3-WIRE RTD

F
532 www.redlion.net
4.0 REVIEWING THE FRONT BUTTONS AND DISPLAY
BUTTON DISPLAY MODE OPERATION PROGRAMMING MODE OPERATION
PAR Access Programming Mode Store selected parameter and index to next parameter
RST
SEL
Resets values (min/max) or outputs
Index display through enabled values
OPERATING MODE DISPLAY DESIGNATORS
MAX - Maximum display capture value
MIN - Minimum display capture value
“SP1” - Indicates setpoint 1 output activated.
“SP2” - Indicates setpoint 2 output activated.
Pressing the SEL button toggles the meter through the selected displays. If display scroll is enabled, the display will toggle automatically every four seconds between
the enabled display values.
Advance through selection list/select digit position in
parameter value
Increment selected digit of parameter value
PROGRAMMING MODE ENTRY (PAR BUTTON)
It is recommended all programming changes be made off line, or before
installation. The meter normally operates in the Display Mode. No parameters
can be programmed in this mode. The Programming Mode is entered by
pressing the PAR button. If it is not accessible, then it is locked by either a
security code or a hardware lock.
MODULE ENTRY (SEL & PAR BUTTONS)
The Programming Menu is organized into four modules. These modules group
together parameters that are related in function. The display will alternate between
Pro and the present module. The SEL button is used to select the desired module.
The displayed module is entered by pressing the PAR button.
MODULE MENU (PAR BUTTON)
Each module has a separate module menu (which is shown at the start of each
module discussion). The PAR button is pressed to advance to a particular
parameter to be changed, without changing the programming of preceding
parameters. After completing a module, the display will return to Pro NO.
Programming may continue by accessing additional modules.
SELECTION / VALUE ENTRY
For each parameter, the display alternates between the present parameter and
the selections/value for that parameter. The SEL and RST buttons are used to
move through the selections/values for that parameter. Pressing the PAR button,
stores and activates the displayed selection/value. This also advances the meter to
the next parameter.
For numeric values, the value is displayed with one digit flashing (initially
the right most digit). Pressing the RST button increments the digit by one or the
user can hold the RST button and the digit will automatically scroll. The SEL
button will select the next digit to the left. Pressing the PAR button will enter the
value and move to the next parameter.
PROGRAMMING MODE EXIT (PAR BUTTON)
The Programming Mode is exited by pressing the PAR button with
displayed. This will commit any stored parameter changes to memory and
return the meter to the Display Mode. (If power loss occurs before returning to
the Display Mode, verify recent parameter changes.)
PROGRAMMING TIPS
It is recommended to start with Module 1 and proceed through each module in
sequence. When programming is complete, it is recommended to record the
parameter programming and lock out parameter programming with the user input
or programming security code.
FACTORY SETTINGS
Factory Settings may be completely restored in Module 2. This is useful
when encountering programming problems.
ALTERNATING SELECTION DISPLAY
In the explanation of the modules, the following dual display with arrows will
appear. This is used to illustrate the display alternating between the parameter
on top and the parameter’s Factory Setting on the bottom. In most cases,
selections and values for the parameter will be listed on the right.
Indicates Program Mode Alternating Display
Factory Settings are shown.
Parameter
Selection/Value
ª
«
5.0 PROGRAMMING THE METER
OVERVIEW
PROGRAMMING MENU

F
5331-717-767-6511
ª
«
5.1 MODULE 1 - INPUT SETUP PARAMETERS ()
PARAMETER MENU
USER INPUT ACTIVE LEVEL
Select whether the user input is configured as active low or active high.
ª
«
INPUT TYPE
ª
«
DISPLAY DECIMAL POINT
Set the decimal point for the desired display resolution. This selection applies
for the Input, MAX and MIN displays, and also affects the Setpoint and Display
Offset values. For mV or RTD resistance displays, the decimal point location is
fixed and this parameter does not appear.
ª
«
FILTER SETTING
If the displayed temperature is difficult to read due to small process
variations or noise, increased levels of filtering will help to stabilize the display.
ª
«
FILTER BAND
The filter will adapt to variations in the input signal. When the variation
exceeds the input filter band value, the filter disengages. When the variation
becomes less than the band value, the filter engages again. This allows for a
stable readout, but permits the display to settle rapidly after a large process
change. The value of the band is in display units, independent of the Display
Decimal Point position. A band setting of ‘0’ keeps the filter permanently
engaged at the filter level selected above.
to display units
Select the thermocouple or RTD type used for the application. For RTDs,
position the Input Range Jumper to match the RTD type (10Ωor 100Ω).
Selecting displays a millivolt signal readout with 10 μV resolution.
ª
«
TEMPERATURE SCALE
Select the desired temperature scale. This selection applies for the Input,
MAX and MIN displays. This parameter does not appear when mV or RTD
resistance display is enabled.
ª
«
DISPLAY OFFSET VALUE
The temperature display can be corrected with an offset value. This can be
used to compensate for probe errors, errors due to variances in probe placement
or adjusting the readout to a reference thermometer.
to
This parameter enables or disables internal cold junction compensation for
thermocouples. For most applications, cold junction compensation should be
enabled (). This parameter only appears for thermocouple input selections.
COLD JUNCTION COMPENSATION
ª
«
USER INPUT FUNCTION
ª
«
Select the value(s) to which the User Input Function is assigned. The User
Input Assignment only applies if a selection of reset or display hold is selected
in the User Input Function menu.
USER INPUT ASSIGNMENT
ª
«
Software filtering effectively combines a fraction of the current input reading
with a fraction of the previous displayed reading to generate the new display.
Filter values represent no filtering (0), up to heavy filtering (3). A value of 1
for the filter uses 1/4 of the new input and 3/4 of the previous display to
generate the new display. A filter value of 2 uses 1/8 new and 7/8 previous. A
filter value of 3 uses 1/16 new and 15/16 previous.
MODE
Reset *
Program Mode Lock-out
No Function
DESCRIPTIONDISPLAY
Display Select * Advance once for each activation.
Setpoint 1 and 2 Reset *
Setpoint 2 Reset *
Setpoint 1 Reset *
Reset both setpoint 1 and 2 outputs.
Reset setpoint 2 output.
Reset setpoint 1 output.
Display Intensity Level * Increase intensity one level for each
activation.
Display Hold
Holds the assigned display, but all other
meter functions continue as long as
activated (maintained action).
Reset the assigned value(s) to the
current input value.
See Programming Mode Access chart
(Module 3).
User Input disabled.
T
E
J
N
C
K
mV
Platinum 385 100 Ω
SELECTION INPUT TYPE INPUT TYPESELECTION
B
S
R
Copper 427 10 Ω
Nickel 672 100 Ω
Platinum 392 100 Ω
* Indicates Edge Triggered function. All others are Level Active functions.

F
534 www.redlion.net
5.2 MODULE 2 - SECONDARY FUNCTION PARAMETERS ()
PARAMETER MENU
MIN DISPLAY ENABLE
ª
«
ª
«
MIN CAPTURE DELAY TIME
When the Input Display is below the present MIN value for the entered delay
time, the meter will capture that display value as the new MIN reading. A delay
time helps to avoid false captures of sudden short spikes.
to sec.
Enables the Minimum Display Capture capability.
ª
«
MAX CAPTURE DELAY TIME
When the Input Display is above the present MAX value for the entered
delay time, the meter will capture that display value as the new MAX reading.
A delay time helps to avoid false captures of sudden short spikes.
to sec.
ª
«
MAX DISPLAY ENABLE
Enables the Maximum Display Capture capability.
Entering Code 66 will overwrite all user settings with
the factory settings. The meter will display and then
return to . Press the PAR button to exit the module
ª
«
Select to perform any of the Factory Service Operations shown below.
FACTORY SERVICE OPERATIONS
ª
«
RESTORE FACTORY DEFAULT SETTINGS
Entering Code 50 will display the version (x.x) of the
meter. The display then returns to . Press the PAR
button to exit the module.
ª
«
VIEW MODEL AND VERSION DISPLAY
Entering Code 85 toggles the selected RTD input display
mode between a temperature or resistance readout. The
resistance readout is useful for diagnostic purposes before
and after calibration, or to display the measured resistance
of a connected RTD probe.
For RTD type (Input Range Jumper in 10Ωposition), resistance is
displayed in ohms resolution. For all other RTD types (100Ωposition),
resistance is displayed in ohms resolution.
Upon entering Code 85, the meter displays either or to indicate
temperature or resistance readout selected. The display then returns to .
Press the PAR button to exit the module.
ª
«
TOGGLE RTD INPUT DISPLAY MODE
The PAXLT uses stored calibration values to provide
accurate temperature measurements. Over time, the
electrical characteristics of the components inside the
meter could slowly change, with the result being that the
stored calibration values may no longer accurately define the input circuit. For
most applications, recalibration every 1 to 2 years should be sufficient.
Calibration for thermocouple inputs involves a voltage calibration and a cold
junction calibration. It is recommended that both calibrations be performed. The
voltage calibration must precede cold junction calibration.
Calibration of the meter should only be performed by persons experienced in
calibrating electronic equipment. Allow a minimum 30 minute warm up before
performing any calibration procedures. The following procedures should be
performed at an ambient temperature of 15 to 35°C (59 to 95°F).
CAUTION: The accuracy of the calibration equipment will directly affect the
accuracy of the meter.
10 OHM RTD Range Calibration
1. Set the Input Range Jumper to 10 ohm position.
2. With the display at , press the PAR key. Unit displays .
3. Press SEL to select 10 ohm range. Display reads .
4. Press PAR. Display reads .
5. Apply a direct short to terminals RTD (4), TC (6) and COMM (7) using a
three wire link. Press PAR. Display reads for about 10 seconds.
6. When the display reads , apply a precision resistance of 15 ohms (with
an accuracy of 0.01% or better) to terminals RTD, TC and COMM using a
three wire link. Press PAR. Display reads for about 10 seconds.
7. When display reads , press PAR twice to exit calibration and return to
the normal display mode.
100 OHM RTD Range Calibration
1. Set the Input Range Jumper to 100 ohm position.
2. With the display at , press the PAR key. Unit displays .
3. Press SEL twice to select 100 ohm range. Display reads .
4. Press PAR. Display reads .
5. Apply a direct short to terminals RTD (4), TC (6) and COMM (7) using a
three wire link. Press PAR. Display reads for about 10 seconds.
6. When the display reads , apply a precision resistance of 300 ohms (with
an accuracy of 0.01% or better) to terminals RTD, TC and COMM using a
three wire link. Press PAR. Display reads for about 10 seconds.
7. When display reads , press PAR twice to exit calibration and return to
the normal display mode.
ª
«
CALIBRATION

F
5351-717-767-6511
This parameter sets the display update time in seconds.
DISPLAY UPDATE TIME
5.3 MODULE 3 - DISPLAY AND FRONT PANEL KEY
PARAMETERS ()
PARAMETER MENU
This selection allows the RST button to reset the selected value(s).
FRONT PANEL RESET ENABLE (RST)
The selection allows the display to automatically scroll through the
enabled displays. The scroll rate is every 4 seconds. This parameter only appears
when the MAX or MIN displays are enabled.
DISPLAY SCROLL ENABLE
Enter the desired Display Intensity Level (1-5). The display will actively dim
or brighten as levels are changed.
DISPLAY INTENSITY LEVEL
The Security Code determines the programming mode and the accessibility
of programming parameters. This code can be used along with the Program
Mode Lock-out () in the User Input Function parameter (Module 1).
Two programming modes are available. Full Programming mode allows all
parameters to be viewed and modified. Quick Programming mode permits only
user selected values to be modified, but allows direct access to these values
without having to enter Full Programming mode.
Entering a Security Code from 1-99 enables Quick Programming mode, and
displays a sublist to select which values appear in the Quick Programming
menu. Values set to in the sublist are accessible in Quick Programming.
These values include the Setpoints (, ) and Display Intensity ().
Programming any Security Code other than 0, requires this code to be entered
at the prompt in order to access Full Programming mode. Quick
Programming mode, if enabled, is accessed before the prompt appears.
PROGRAMMING SECURITY CODE
to
to
ª
«
ª
«
ª
«
ª
«
ª
«
USER INPUT
FUNCTION
USER INPUT
STATE
SECURITY
CODE
MODE WHEN “PAR”
BUTTON IS PRESSED
FULL PROGRAMMING
MODE ACCESS
0Full Programming Immediate Access
not
______ 1-99 Quick Programming
After Quick Programming
with correct code entry
at prompt *
100-999 prompt With correct code entry
at prompt *
0Programming Lock No Access
Active 1-99 Quick Programming No Access
100-999 prompt With correct code entry
at prompt *
Not Active 0-999 Full Programming Immediate Access
* Entering Code 222 allows access regardless of security code.
THERMOCOUPLE Voltage Calibration
1. Connect a precision DC voltage source with an accuracy of 0.01% or better
to the TC and COMM terminals. Set the voltage source to zero.
2. With the display at , press the PAR key. Unit displays .
3. Press SEL until the display reads to select thermocouple input.
4. Press PAR. Display reads .
5. With the voltage source set to zero, press PAR. Display reads for about
6 seconds.
6. When the display reads , set the voltage source output to 60.000 mV.
Press PAR. Display reads for about 6 seconds.
7. When display reads , press PAR twice to exit calibration and return to
the normal display mode. Proceed to Cold Junction Calibration.
THERMOCOUPLE Cold Junction Calibration
1. The ambient temperature must be between 20°C and 30°C.
2. Connect a thermocouple (types T, E, J, K or N only) with an accuracy of 1°C
or better to the meter.
3. Enter programming mode and verify the following settings in Module 1:
= thermocouple type connected to the meter
= ; = ; = ; =
4. Place the thermocouple in close thermal contact to a reference thermometer
probe. (Use a reference thermometer with an accuracy of 0.25°C or better.)
The two probes should be shielded from air movement and allowed sufficient
time to equalize in temperature. (A calibration bath of known temperature
could be used in place of the thermometer.)
5. Compare the unit display with the reference temperature indicator (or
calibration bath). If a difference of more than +/- 1.0°C exists, note the
difference (CJ Error) and continue with cold junction calibration.
CJ Error = Reference Temperature - Unit Display
6. Enter programming mode and proceed through Module 2 to the Service
Access Code. Select and press PAR. Unit displays . Press
RST to select .
7. Press PAR. Display reads followed by the current cold junction value.
Calculate a new cold junction value as follows:
New cold junction = Current cold junction + CJ Error (noted above)
8. Press PAR and set the display to the new cold junction value. Press PAR to
enter the new value. Display reads for 6 seconds and returns to .
9. Press PAR twice to exit calibration and return to the normal display mode.
Verify the input reading is correct. If not, repeat steps 5 through 9.
The selection allows the SEL key to toggle through the enabled displays.
FRONT PANEL DISPLAY SELECT ENABLE (SEL)
ª
«
The PAXLT includes two units overlay labels (°C and °F) which can be
installed into the meter's bezel display assembly. The backlight for the units
label is activated by this parameter.
UNITS LABEL BACKLIGHT
ª
«
seconds

F
536 www.redlion.net
5.4 MODULE 4 - SETPOINT OUTPUT PARAMETERS ()
PARAMETER MENU
Select the Setpoint Output to be programmed, starting with Setpoint 1. The
“” in the following parameters reflects the chosen Setpoint number. After the
selected setpoint is completely programmed, the display returns to .
Repeat steps for Setpoint 2 if both Setpoints are being used. Select to exit the
Setpoint programming module.
SETPOINT SELECT
Select to enable Setpoint and access the setup parameters. If is
selected, the unit returns to and Setpoint is disabled.
SETPOINT ENABLE
ª
«
ª
«
Enter the action for the selected setpoint (output). See Setpoint Output
Figures for a visual detail of each action.
SETPOINT ACTION
ª
«
High Acting, with balanced hysteresis
Low Acting, with balanced hysteresis
High Acting, with unbalanced hysteresis
Low Acting, with unbalanced hysteresis
=
=
=
=
High Acting (Balanced Hys) = Low Acting (Balanced Hys) =
Low Acting (Unbalanced Hys) =
High Acting (Unbalanced Hys) =
SETPOINT VALUE
Enter the desired setpoint value. The decimal point position for the setpoint
and hysteresis values follow the selection set in Module 1.
to
ª
«
ª
«
HYSTERESIS VALUE
to
Enter desired hysteresis value. See Setpoint Output Figures for visual
explanation of how setpoint output actions (balanced and unbalanced) are
affected by the hysteresis. When the setpoint is a control output, usually
balanced hysteresis is used. For alarm applications, usually unbalanced
hysteresis is used. For unbalanced hysteresis modes, the hysteresis functions on
the low side for high acting setpoints and functions on the high side for low
acting setpoints.
Note: Hysteresis eliminates output chatter at the switch point, while time delay
can be used to prevent false triggering during process transient events.
ª
«
OFF TIME DELAY
to Sec
Enter the time value in seconds that the output is delayed from turning off
after the trigger point is reached. A value of 0.0 allows the meter to update the
output status per the response time listed in the Specifications.
ª
«
ON TIME DELAY
Enter the time value in seconds that the output is delayed from turning on
after the trigger point is reached. A value of 0.0 allows the meter to update the
output status per the response time listed in the Specifications.
to Sec
Enter the reset action of the output. See figure for details.
= Automatic action; This action allows the output to automatically reset
off at the trigger points per the Setpoint Action shown in Setpoint Output
Figures. The “on” output may be manually reset (off) immediately by the
front panel RST button or user input.The output remains off until the trigger
point is crossed again.
OUTPUT RESET ACTION
ª
«

F
5371-717-767-6511
This parameter enables the RST button or user input to reset the output when
the display is reset.
Note: For this parameter to operate, the RST button or User Input being used
must be set to and the Input value must be displayed. If these conditions
are not met, the output will not reset.
ª
«
OUTPUT RESET WITH DISPLAY RESET
When , the output is disabled (after a power up) until the trigger point is
crossed. Once the output is on, the output operates normally per the Setpoint
Action and Output Reset Action.
ª
«
STANDBY OPERATION
Enter the probe burn-out action. In the event of a temperature probe failure
(TC open; RTD open or short), the output can be programmed to be on or off.
ª
«
PROBE BURN-OUT ACTION
= Latch with immediate reset action; This action latches the output on at
the trigger point per the Setpoint Action shown in Setpoint Output Figures.
Latch means that the output can only be turned off by the front panel RST
button or user input manual reset, or meter power cycle. When the user input
or RST button is activated (momentary action), the corresponding “on” output
is reset immediately and remains off until the trigger point is crossed again.
(Previously latched alarms will be off if power up Display Value is lower than
setpoint value.)
= Latch with delay reset action; This action latches the output on at the
trigger point per the Setpoint Action shown in Setpoint Output Figures.
Latch means that the output can only be turned off by the front panel RST
button or user input manual reset, or meter power cycle. When the user input
or RST button is activated (momentary action), the meter delays the event
until the corresponding “on” output crosses the trigger off point. (Previously
latched outputs are off if power up Display Value is lower than setpoint
value. During a power cycle, the meter erases a previous reset if it is
not activated at power up.)
Setpoint Output Reset Actions

F
538 www.redlion.net
PAXLT PROGRAMMING QUICK OVERVIEW
Press PAR key to enter
Programming Mode.

F
5391-717-767-6511
MODEL DP5T - THERMOCOUPLE AND RTD INPUT
This is a brief overview of the DP5T. For complete specifications and programming information, see the
DP5 Analog Input Panel Meters Bulletin starting on page 358.
C
C
US LISTED
US LISTED
UL
R
IND. CONT. EQ.
51EB
THERMOCOUPLE AND RTD INPUTS
CONFORMS TO ITS-90 STANDARDS
TIME-TEMPERATURE INTEGRATOR
5-DIGIT 0.56" HIGH RED LED DISPLAY
PROGRAMMABLE FUNCTION KEYS/USER INPUT
9 DIGIT TOTALIZER (INTEGRATOR) WITH BATCHING
DP5T SPECIFICATIONS
READOUT:
Resolution: Variable: 0.1, 0.2, 0.5, or 1, 2, or 5 degree
Scale: F or C
Offset Range: -19,999 to 99,999 display units
THERMOCOUPLE INPUTS:
Input Impedance: 20 MΩ
Lead Resistance Effect: 0.03 μV/ohm
Max. Continuous Overvoltage: 30 V
RTD INPUTS:
Type: 3 or 4 wire, 2 wire can be compensated for lead wire resistance
Excitation current: 100 ohm range: 165 μA
10 ohm range: 2.6 mA
Lead resistance: 100 ohm range: 10 ohm/lead max.
10 ohm range: 3 ohms/lead max.
Max. continuous overload: 30 V
DIRECT READOUT:
Input range: -10 to 65 mV
0 to 400 ohms, high range
0 to 25 ohms, low range
Display range: -19999 to 99999
STANDARD
***
ACCURACY*
(0 to 50°C)
ACCURACY*
(18 to 28°C)
RANGE
no official
standard
0.9°C0.4°C-100 to 260°C
10 ohm Copper
alpha = .00427
INPUT TYPE
no official
standard
0.5°C0.2°C-80 to 260°C
120 ohm Nickel
alpha = .00672
no official
standard
1.6°C0.4°C-200 to 850°C
100 ohm Pt
alpha = .003919
IEC 7511.6°C0.4°C-200 to 850°C
100 ohm Pt
alpha = .00385
WIRE COLOR
INPUT
TYPE RANGE ACCURACY*
(0 to 50°C) STANDARD
ANSI BS 1843
T-200 to 400°C
-270 to -200°C
1.2°C
**
2.1°C ITS-90 (+) blue
(-) red
(+) white
(-) blue
E-200 to 871°C
-270 to -200°C
1.0°C
**
2.4°C ITS-90 (+) purple
(-) red
(+) brown
(-) blue
J-200 to 760°C 1.1°C 2.3°C ITS-90 (+) white
(-) red
(+) yellow
(-) blue
K-200 to 1372°C
-270 to -200°C
1.3°C
**
3.4°C ITS-90 (+) yellow
(-) red
(+) brown
(-) blue
R-50 to 1768°C 1.9°C 4.0°C ITS-90 no
standard
(+) white
(-) blue
S-50 to 1768°C 1.9°C 4.0°C ITS-90 no
standard
(+) white
(-) blue
B100 to 300°C
300 to 1820°C
3.9°C
2.8°C
5.7°C
4.4°C ITS-90 no
standard
no
standard
N-200 to 1300°C
-270 to -200°C
1.3°C
**
3.1°C ITS-90 (+) orange
(-) red
(+) orange
(-) blue
C
(W5/W26) 0 to 2315°C 1.9°C 6.1°C ASTM
E988-90***
no
standard
no
standard
*After 20 min. warm-up. Accuracy is specified in two ways: Accuracy over an
18 to 28°C and 15 to 75% RH environment; and Accuracy over a 0 to 50°C and 0
to 85% RH (non condensing) environment. Accuracy specified over the 0 to 50°C
operating range includes meter tempco and ice point tracking effects. The
specification includes the A/D conversion errors, linearization conformity, and
thermocouple ice point compensation. Total system accuracy is the sum of meter
and probe errors. Accuracy may be improved by field calibrating the meter readout
at the temperature of interest.
** The accuracy over the interval -270 to -200°C is a function of temperature,
ranging from 1°C at -200°C and degrading to 7°C at -270°C. Accuracy may be
improved by field calibrating the meter readout at the temperature of interest.
*** These curves have been corrected to ITS-90.
ACCURACY*
(18 to 28°C)
ACCURACY*
(0 to 50°C)
0.20% of reading
+ 0.007 Ω
0.12% of reading
+ 0.05 Ω
0.04% of reading
+ 0.005 Ω
0.02% of reading
+ 0.04 Ω
0 to 25 Ω
(1 MΩres.)
0 to 400 Ω
(10 MΩres.)
Direct
10 ohm range
Direct
100 ohm range
0.12% of reading
+ 5μV
0.02% of reading
+ 4μV
-10 to 65mV
(1 μV res.)
Direct
mV range
ACCURACY*
(18 to 28°C)
RANGEINPUT TYPE

F
540 www.redlion.net
MODEL PAXT - THERMOCOUPLE AND RTD INPUT
This is a brief overview of the PAXT. For complete specifications and programming information, see the
PAX Analog Input Panel Meters Bulletin starting on page 378.
C
C
US LISTED
US LISTED
UL
R
IND. CONT. EQ.
51EB
THERMOCOUPLE AND RTD INPUTS
CONFORMS TO ITS-90 STANDARDS
CUSTOM SCALING FOR NON-STANDARD PROBES
TIME-TEMPERATURE INTEGRATOR
5-DIGIT 0.56" RED SUNLIGHT READABLE OR STANDARD
GREEN DISPLAY
VARIABLE INTENSITY DISPLAY
OPTIONAL CUSTOM UNITS OVERLAY W/BACKLIGHT
FOUR SETPOINT ALARM OUTPUTS (W/OPTION CARD)
COMMUNICATION AND BUS CAPABILITIES (W/OPTION CARD)
RETRANSMITTED ANALOG OUTPUT (W/OPTION CARD)
CRIMSON PROGRAMMING SOFTWARE
PAXT SPECIFICATIONS
READOUT:
Resolution: Variable: 0.1, 0.2, 0.5, or 1, 2, or 5 degrees
Scale: F or C
Offset Range: -19,999 to 99,999 display units
THERMOCOUPLE INPUTS:
Input Impedance: 20 MΩ
Lead Resistance Effect: 0.03 μV/ohm
Max. Continuous Overvoltage: 30 V
RTD INPUTS:
Type: 3 or 4 wire, 2 wire can be compensated for lead wire resistance
Excitation current: 100 ohm range: 165 μA
10 ohm range: 2.6 mA
Lead resistance: 100 ohm range: 10 ohm/lead max.
10 ohm range: 3 ohms/lead max.
Max. continuous overload: 30 V
CUSTOM RANGE: Up to 16 data point pairs
Input range: -10 to 65 mV
0 to 400 ohms, high range
0 to 25 ohms, low range
Display range: -19999 to 99999
STANDARD
***
ACCURACY*
(0 to 50°C)
ACCURACY*
(18 to 28°C)
RANGE
no official
standard
0.9°C0.4°C-100 to 260°C
10 ohm Copper
alpha = .00427
INPUT TYPE
no official
standard
0.5°C0.2°C-80 to 260°C
120 ohm Nickel
alpha = .00672
no official
standard
1.6°C0.4°C-200 to 850°C
100 ohm Pt
alpha = .003919
IEC 7511.6°C0.4°C-200 to 850°C
100 ohm Pt
alpha = .00385
0.20% of reading
+ 0.007 Ω
0.04% of reading
+ 0.005 Ω
0 to 25 Ω
(1 MΩres.)
Custom
10 ohm range
0.12% of reading
+ 0.05 Ω
0.02% of reading
+ 0.04 Ω
0 to 400 Ω
(10 MΩres.)
Custom
100 ohm range
ACCURACY*
(0 to 50°°C)
0.12% of reading
+ 5μV
0.02% of reading
+ 4μV
-10 to 65mV
(1 μV res.)
Custom
mV range
ACCURACY*
(18 to 28°°C)
RANGEINPUT TYPE
WIRE COLOR
INPUT
TYPE RANGE ACCURACY*
(0 to 50°C) STANDARD
ANSI BS 1843
T-200 to 400°C
-270 to -200°C
1.2°C
**
2.1°C ITS-90 (+) blue
(-) red
(+) white
(-) blue
E-200 to 871°C
-270 to -200°C
1.0°C
**
2.4°C ITS-90 (+) purple
(-) red
(+) brown
(-) blue
J-200 to 760°C 1.1°C 2.3°C ITS-90 (+) white
(-) red
(+) yellow
(-) blue
K-200 to 1372°C
-270 to -200°C
1.3°C
**
3.4°C ITS-90 (+) yellow
(-) red
(+) brown
(-) blue
R-50 to 1768°C 1.9°C 4.0°C ITS-90 no
standard
(+) white
(-) blue
S-50 to 1768°C 1.9°C 4.0°C ITS-90 no
standard
(+) white
(-) blue
B100 to 300°C
300 to 1820°C
3.9°C
2.8°C
5.7°C
4.4°C ITS-90 no
standard
no
standard
N1.3°C
**
3.1°C ITS-90 (+) orange
(-) red
(+) orange
(-) blue
C
(W5/W26) 0 to 2315°C 1.9°C 6.1°C ASTM
E988-90***
no
standard
no
standard
*After 20 min. warm-up. Accuracy is specified in two ways: Accuracy over an
18 to 28°C and 15 to 75% RH environment; and Accuracy over a 0 to 50°C and 0
to 85% RH (non condensing) environment. Accuracy specified over the 0 to 50°C
operating range includes meter tempco and ice point tracking effects. The
specification includes the A/D conversion errors, linearization conformity, and
thermocouple ice point compensation. Total system accuracy is the sum of meter
and probe errors. Accuracy may be improved by field calibrating the meter readout
at the temperature of interest.
** The accuracy over the interval -270 to -200°C is a function of temperature,
ranging from 1°C at -200°C and degrading to 7°C at -270°C. Accuracy may be
improved by field calibrating the meter readout at the temperature of interest.
*** These curves have been corrected to ITS-90.
ACCURACY*
(18 to 28°C)
-200 to 1300°C
-270 to -200°C

F
5411-717-767-6511
GENERAL DESCRIPTION
The Model T16 Controller accepts signals from a variety of temperature
sensors (thermocouple or RTD), while the Model P16 Controller accepts either a
0 to 10 VDC or 0/4 to 20 mA DC input signal. Both controllers can provide an
accurate output control signal (time proportional or DC Analog Output) to
maintain a process at a setpoint value. Dual 4-digit displays allow viewing of the
process/temperature and setpoint simultaneously. Front panel indicators inform
the operator of the controller and output status. The comprehensive programming
allows these controllers to meet a wide variety of application requirements.
MAIN CONTROL
The controller operates in the PID Control Mode for both heating and
cooling, with on-demand auto-tune, that establishes the tuning constants. The
PID tuning constants may be fine-tuned through the front panel and then locked
out from further modification. The controller employs a unique overshoot
suppression feature, that allows the quickest response without excessive
overshoot. Switching to Manual Mode provides the operator direct control of the
output. The controller may also be programmed to operate in On/Off mode with
adjustable hysteresis.
ALARMS
Optional alarm(s) can be configured independently for absolute high or low
acting with balanced or unbalanced hysteresis. They can also be configured for
deviation and band alarm. In these modes, the alarm trigger values track the
setpoint value. Adjustable alarm hysteresis can be used for delaying output
response. The alarms can be programmed for Automatic or Latching operation.
A selectable standby feature suppresses the alarm during power-up until the
temperature stabilizes outside the alarm region.
ANALOG OUTPUT OPTION
The optional DC Analog Output (10 V or 20 mA) can be configured and
scaled for control or re-transmission purposes. The programmable output update
time reduces valve or actuator activity.
PC PROGRAMMING KIT
The optional TP16KIT contains a programming module with a 9 pin RS232
connector, cable and Crimson, a Windows®based configuration software. The
software allows downloading, uploading and storage of T16 and P16 program
files. All controllers have a communications port that allows configuration by
PC even without controller power connected. Controller calibration is also
possible using the software when the proper calibration equipment and
controller power is connected.
CONSTRUCTION
The controller is constructed of a lightweight, high impact, black plastic
textured case and bezel with a clear display window. The front panel meets
NEMA 4X/IP65 specifications when properly installed. In applications that do
not require protection to NEMA 4X, multiple controllers can be stacked
horizontally or vertically. Modern surface-mount technology, extensive testing,
plus high immunity to noise interference makes the controller extremely reliable
in industrial environments.
SAFETY SUMMARY
All safety related regulations, local codes and instructions that appear in the
manual or on equipment must be observed to ensure personal safety and to
prevent damage to either the instrument or equipment connected to it. If
equipment is used in a manner not specified by the manufacturer, the protection
provided by the equipment may be impaired.
Do not use the controller to directly command motors, valves, or other actuators
not equipped with safeguards. To do so can be potentially harmful to persons or
equipment in the event of a fault to the controller. An independent and redundant
temperature limit indicator with alarm outputs is strongly recommended.
MODELS T16 & P16 - TEMPERATURE/PROCESS CONTROLLERS
zPID CONTROL WITH REDUCED OVERSHOOT
zT16 ACCEPTS TC AND RTD
zP16 ACCEPTS 0-10 V AND 0/4-20 mA SIGNALS
zON DEMAND AUTO-TUNING OF PID SETTINGS
zDC ANALOG OUTPUT (OPTIONAL)
zUSER PROGRAMMABLE FUNCTION BUTTON
zPC OR FRONT PANEL PROGRAMMING
zPC CONFIGURABLE WITH TP16KIT
DIMENSIONS In inches (mm)
PANEL CUT-OUT
UL Recognized Component,
File #E156876
CAUTION: Risk of Danger.
Read complete instructions prior to
installation and operation of the unit.
CAUTION: Risk of electric shock.

F
542 www.redlion.net
INPUT SPECIFICATIONS
1. SENSOR INPUT:
Sample Period: 100 msec (10 Hz rate)
Step Response Time: 300 msec typical, 400 msec max to within 99% of final
value with step input.
Failed Sensor Response:
Main Control Output(s): Programmable preset output
Display: “OPEN”
Alarms: Upscale drive
Analog Output: Upscale drive when assigned to retransmitted input.
Normal Mode Rejection: >40 dB @ 50/60 Hz
Common Mode Rejection: >120 dB, DC to 60 Hz
Overvoltage Protection: 120 VAC @ 15 sec max
2. RTD INPUTS: (T16 only)
Type: 2 or 3 wire
Excitation: 150 μA typical
Lead Resistance: 15 Ωmax per input lead
Resolution: 1° or 0.1° for all types
3. THERMOCOUPLE INPUTS: (T16 only)
Types: T, E, J, K, R, S, B, N, C, and Linear mV
Input Impedance: 20 MΩfor all types
Lead Resistance Effect: 0.25 μV/Ω
Cold Junction Compensation: Less than ±1°C typical (1.5°C max) error
over ambient temperature range.
Resolution: 1° for types R, S, B and 1° or 0.1° for all other types
GENERAL SPECIFICATIONS
1. DISPLAY: 2 Line by 4-digit, LCD negative image transmissive with
backlighting.
Top (Process) Display: 0.3" (7.6 mm) high digits with red backlighting.
Bottom (Parameter) Display: 0.2" (5.1 mm) high digits with green
backlighting.
2. ANNUNCIATORS:
Status Annunciators:
O1 - Main control output is active.
O2 - Cooling output is active (when Alarm 2 is used for cooling).
A1 - Alarm 1 output is active.
A2 - Alarm 2 output is active.
°F, °C - Temperature units.
%PW - Output power percentage is shown in Bottom display.
MAN - Controller is in Manual Mode.
R - Ramping Setpoint indicator.
% - Percent indicator (P16 models only).
Display Messages:
OLOL - Measurement exceeds + sensor range
ULUL - Measurement exceeds - sensor range
OPEN - Open sensor is detected (T16 only)
SHrt - Shorted sensor is detected (RTD only)
SENS - Measurement exceeds controller limits (P16 only)
dddd - Display value exceeds + display range
-ddd - Display value exceeds - display range
3. POWER:
Line Voltage Models:
85 to 250 VAC, 50/60 Hz, 8 VA
Low Voltage Models:
DC Power: 18 to 36 VDC, 4 W
AC Power: 24 VAC, ±10%, 50/60 Hz, 7 VA
4. CONTROLS: Three rubber push buttons for modification and setup of
controller parameters. One additional button (F1) for user programmable
function. One external user input (models with alarms) for parameter lockout
or other user programmable functions.
5. MEMORY: Nonvolatile E2PROM retains all programmable parameters.
6. ISOLATION LEVEL:
AC power with respect to all other I/O: 250 V working (2300 V for 1 min.)
Sensor input to analog output: 50 V working (500 V for 1 minute)
Relay contacts to all other I/O: 300 V working (2300 V for 1 minute)
DC power with respect to sensor input and analog output: 50 V working
(500 V for 1 minute)
7. CERTIFICATIONS AND COMPLIANCES:
SAFETY
UL Recognized Component, File #E156876, UL873, CSA 22.2 No. 24
Recognized to US and Canadian requirements under the Component
Recognition Program of Underwriters Laboratories, Inc.
Type 4X Enclosure rating (Face only), UL50
IEC 61010-1, EN 61010-1: Safety requirements for electrical equipment
for measurement, control, and laboratory use, Part I
IP65 Enclosure rating (Face only), IEC 529
ELECTROMAGNETIC COMPATIBILITY
Notes:
1. Self-recoverable loss of performance during EMI disturbance at 10 V/m:
Measurement input signal may deviate during EMI disturbance.
For operation without loss of performance:
Install one ferrite core one turn, RLC #FCOR0000 or equivalent, to I/O
cables at unit.
2. Self-recoverable loss of performance during EMI disturbance at 10 Vrms:
Process and analog output signal may deviate during EMI disturbance.
For operation without loss of performance:
Install one ferrite core one turn, RLC #FCOR0000 or equivalent, to I/O
cables and power cable at unit.
Refer to the EMC Installation Guidelines section of this bulletin for
additional information.
8. ENVIRONMENTAL CONDITIONS:
Operating Temperature Range: 0 to 50°C
Storage Temperature Range: -40 to 80°C
Operating and Storage Humidity: 85% max relative humidity (non-
condensing) from 0°C to 50°C
Vibration According to IEC 68-2-6: Operational 5 to 150 Hz, in X, Y, Z
direction for 1.5 hours, 2 g’s.
Shock According to IEC 68-2-27: Operational 20 g’s (10 g relay), 11 msec
in 3 directions.
Altitude: Up to 2000 meters
9. CONNECTION: Wire-clamping screw terminals
10. CONSTRUCTION: Black plastic alloy case and collar style panel latch.
Panel latch can be installed for vertical or horizontal instrument stacking.
Black plastic textured bezel with transparent display window. Controller
meets NEMA 4X/IP65 requirements for indoor use when properly installed.
Installation Category II, Pollution Degree 2.
11. WEIGHT: 6.3 oz (179 g)
-200 to +750°C
-328 to +1382°F
N/AN/AN/A
-5.00 mV to
56.00 mV
mV
ASTM
E988-96
No
standard
No
standard
0 to +2315°C
+32 to +4199°F
C
W5/W6
ITS-90
(+) Orange
(-) Blue
(+) Orange
(-) Red
-200 to +1300°C
-328 to +2372°F
N
ITS-90
No
standard
No
standard
+149 to +1820°C
+300 to +3308°F
B
ITS-90
(+) White
(-) Blue
No
standard
0 to +1768°C
+32 to +3214°F
S
ITS-90
(+) White
(-) Blue
No
standard
0 to +1768°C
+32 to +3214°F
R
ITS-90
(+) Brown
(-) Blue
(+) Yellow
(-) Red
-200 to +1250°C
-328 to +2282°F
K
ITS-90
(+) Yellow
(-) Blue
(+) White
(-) Red
-200 to +760°C
-328 to +1400°F
J
ITS-90
(+) Brown
(-) Blue
(+) Violet
(-) Red
E
ITS-90
(+) White
(-) Blue
(+) Blue
(-) Red
-200 to +400°C
-328 to +752°F
T
BS 1843ANSI STANDARD
WIRE COLOR
DISPLAY RANGETYPE
TYPE INPUT TYPE RANGE STANDARD
385 100 Ωplatinum,
Alpha = .00385
-200 to +600°C
-328 to +1112°F IEC 751
392 100 Ωplatinum,
Alpha = .003919
-200 to +600°C
-328 to +1112°F
No official
standard
672 120 Ωnickel,
Alpha = .00672
-80 to +215°C
-112 to +419°F
No official
standard
Ohms Linear Resistance 0.0 to 320.0 ΩN/A
Emissions to EN 50081-2
Enclosure class AEN 55011RF interference
150 KHz - 80 MHz
Level 3; 10 V/rms 2
EN 61000-4-6RF conducted interference
Level 3; 2 kV power
Level 4; 2 kV I/OEN 61000-4-4Fast transients (burst)
80 MHz - 1 GHz
Level 3; 10 V/m 1
EN 61000-4-3Electromagnetic RF fields
Level 2; 4 kV contact
Level 3; 8 kV air
EN 61000-4-2Electrostatic discharge
Immunity to EN 50082-2
Power mains class A

F
5431-717-767-6511
OUTPUT SPECIFICATIONS
1. CONTROL AND ALARM OUTPUTS:
Relay Output:
Type: Form A
Contact Rating: 3 A @ 250 VAC or 30 VDC; 1/10 HP @ 120 VAC
(inductive load)
Life Expectancy: 100,000 cycles at max. load rating
(Decreasing load and/or increasing cycle time, increases life expectancy)
Logic/SSR Output (main control output only):
Rating: 45 mA max @ 4 V min., 7 V nominal
2. MAIN CONTROL:
Control: PID or On/Off
Output: Time proportioning or DC Analog
Cycle Time: Programmable
Auto-Tune: When selected, sets proportional band, integral time, derivative
time, and output dampening time. Also sets input filter and (if applicable)
cooling gain.
Probe Break Action: Programmable
3. ALARMS: (optional) 2 relay alarm outputs.
Modes:
None
Absolute High Acting (Balanced or Unbalanced Hysteresis)
Absolute Low Acting (Balanced or Unbalanced Hysteresis)
Deviation High Acting
Deviation Low Acting
Inside Band Acting
Outside Band Acting
Heat (Alarm 1 on Analog Output models only)
Cool (Alarm 2)
Reset Action: Programmable; automatic or latched
Standby Mode: Programmable; enable or disable
Hysteresis: Programmable
Sensor Fail Response: Upscale
Annunciator: “A1” and “A2” programmable for normal or reverse acting
4. COOLING: Software selectable (overrides Alarm 2).
Control: PID or On/Off
Output: Time proportioning
Cycle Time: Programmable
Proportional Gain Adjust: Programmable
Heat/Cool Deadband Overlap: Programmable
5. ANALOG DC OUTPUT: (optional)
Action: Control or retransmission
Update Rate: 0.1 to 250 sec
*Accuracies are expressed as ± percentages over 0 to 50 °C ambient range
after 20 minute warm-up.
** Outputs are independently jumper selectable for either 10 V or 20 mA. The
output range may be field calibrated to yield approximately 5% overrange
and a small underrange (negative) signal.
OUTPUT
RANGE ** ACCURACY * COMPLIANCE RESOLUTION
0 to 10 V 0.3% of FS
+ ½ LSD 10 kΩmin 1/8000
0 to 20 mA 0.3% of FS
+ ½ LSD 500 Ωmax 1/8000
4 to 20 mA 0.3% of FS
+ ½ LSD 500 Ωmax 1/6400
INPUT SPECIFICATIONS (Cont’d)
4. SIGNAL INPUT: (P16 only)
*Accuracies are expressed as ± percentages over 0 to 50 °C ambient range
after 20 minute warm-up.
5. TEMPERATURE INDICATION ACCURACY: (T16 only)
± (0.3% of span, +1°C) at 23 °C ambient after 20 minute warm up. Includes
NIST conformity, cold junction effect, A/D conversion errors and
linearization conformity.
Span Drift (maximum): 130 PPM/°C
6. USER INPUT: (Only controllers with alarms have a user input terminal.)
Internally pulled up to +7 VDC (100 KΩ), VIN MAX = 35 V, VIL = 0.6 V max,
VIH = 1.5 V min, IOFF = 40 μA max
Response Time: 120 msec max
Functions: Programmable
INPUT RANGE ACCURACY * IMPEDANCE RESOLUTION
10 VDC
(-1 to 11) 1 MΩ50 V 10 mV
20 mA DC
(-2 to 22) 10 Ω100 mA 10 µA
MAX
CONTINUOUS
OVERLOAD
0.30 % of
reading
+0.03V
0.30 % of
reading
+0.04mA
ORDERING INFORMATION
18-36 VDC/24 VAC 85 to 250 VAC
Relay —T1610010 T1610000
Relay Yes T1611110 T1611100
T16 Logic/SSR — T1620010 T1620000
Logic/SSR Yes T1621110 T1621100
Analog Out * Yes T1641110 T1641100
Relay — P1610010 P1610000
Relay Yes P1611110 P1611100
P16 Logic/SSR — P1620010 P1620000
Logic/SSR Yes P1621110 P1621100
Analog Out * Yes P1641110 P1641100
MODEL NO. MAIN CONTROL 2 ALARMS & USER INPUT PART NUMBERS
* Analog out may be used for retransmitted signals. When using analog output for retransmitted signals,
AL1 becomes main control O1, if selected for heating in the analog out models.
MODEL NO. DESCRIPTION PART NUMBERS
TP16
Programming Kit 1 : Includes Software, Comms Module w/
9-pin connector and cable, and 115 VAC Power Adapter TP16KIT1
Programming Kit 2 : Includes Software, Comms Module w/
9-pin connector and cable TP16KIT2
RLY
External SSR Power Unit (for Logic/SSR models) RLY50000
40 A Single Phase Din Rail Mount Solid State Relay
25 A Single Phase Din Rail Mount Solid State Relay
RLY6A000
RLY60000
Three Phase Din Rail Mount Solid State Relay RLY70000
ACCESSORIES

F
544 www.redlion.net
EMC INSTALLATION GUIDELINES
Although this controller is designed with a high degree of immunity to
Electromagnetic Interference (EMI), proper installation and wiring methods
must be followed to ensure electromagnetic compatibility (EMC) in each
application. The type of the electrical noise, source or coupling method into the
controller may be different for various installations. The controller becomes
more immune to EMI with fewer I/O connections. Cable length, routing, and
shield termination are very important and can mean the difference between a
successful or troublesome installation. Listed are some EMC guidelines for
successful installation in an industrial environment.
1. The controller should be mounted in a metal enclosure that is properly
connected to protective earth.
2. Use shielded (screened) cables for all Signal and Control inputs. The shield
(screen) pigtail connection should be made as short as possible. The
connection point for the shield depends somewhat upon the application.
Listed below are the recommended methods of connecting the shield, in order
of their effectiveness.
a. Connect the shield only at the panel where the controller is mounted to
earth ground (protective earth).
b. Connect the shield to earth ground at both ends of the cable, usually when
the noise source frequency is more than 1 MHz.
c. Connect the shield to common of the controller and leave the other end of
the shield unconnected and insulated from earth ground.
3. Never run Signal or Control cables in the same conduit or raceway with AC
power lines, conductors feeding motors, solenoids, SCR controls, and
heaters, etc. The cables should be run through metal conduit that is properly
grounded. This is especially useful in applications where cable runs are long
and portable two-way radios are used in close proximity or if the installation
is near a commercial radio transmitter.
4. Signal or Control cables within an enclosure should be routed as far away as
possible from contactors, control relays, transformers, and other noisy
components.
5. In extremely high EMI environments, the use of external EMI suppression
devices, such as ferrite suppression cores, is effective. Install them on Signal
and Control cables as close to the controller as possible. Loop the cable
through the core several times or use multiple cores on each cable for
additional protection. Install line filters on the power input cable to the
controller to suppress power line interference. Install them near the power
entry point of the enclosure. The following EMI suppression devices (or
equivalent) are recommended:
Ferrite Suppression Cores for Signal and Control cables:
Fair-Rite # 0443167251 (Red Lion Controls # FCOR0000)
TDK # ZCAT3035-1330A
Steward # 28B2029-0A0
Line Filters for input power cables:
Schaffner # FN610-1/07 (Red Lion Controls # LFIL0000)
Schaffner # FN670-1.8/07
Corcom # 1 VR3
Note: Reference manufacturer’s instructions when installing a line filter.
6. Long cable runs are more susceptible to EMI pickup than short cable runs.
Therefore, keep cable runs as short as possible.
7. Switching of inductive loads produces high EMI. Use of snubbers across
inductive loads suppresses EMI.
Snubber: Red Lion Controls # SNUB0000.
BLOCK DIAGRAM
*A1 becomes main control O1, if selected for heating in the
analog out models.

F
5451-717-767-6511
1.0 SETTING THE JUMPERS (ANALOG OUTPUT MODELS ONLY)
To insure proper operation, the Analog Output jumpers must be set to the
same range selected in programming Module 2-OP. The default jumper
setting is for 20 mA. The default setting in Module 2-OP is 4-20
mA. To access the jumpers, insert a flat-blade screwdriver
between the front panel and the side case slot. This
should disengage the top and bottom front panel
latches from the case grooves. Pull the
front panel assembly with the controller
boards out of the case. The jumpers
are located inside the controller
on the left board along the
back top section.
VIEW FROM TOP OF UNIT
2.0 INSTALLING THE CONTROLLER
The T16 and P16 controllers meet NEMA 4X/IP65 requirements for indoor
use to provide a watertight seal in steel panels with a minimum thickness of
0.09", or aluminum panels with a
minimum thickness of 0.12". The
controllers are designed to be
mounted into an enclosed panel.
The bezel assembly must be in
place during installation of
the controller.
Instructions:
1. Prepare the panel cutout to the proper dimensions.
2. Remove the panel latch from the controller. Discard the cardboard sleeve.
3. Carefully remove the center section of the panel gasket and discard. Slide the
panel gasket over the rear of the controller, seating it against the lip at the
front of the case.
4. Insert the controller into the panel cutout. While holding the controller in
place, push the panel latch over the rear of the controller, engaging the tabs
of the panel latch in the farthest forward slot possible.
5. To achieve a proper seal, tighten the panel latch
screws evenly until the controller is snug in the
panel, torquing the screws to approximately 7 in-
lb (79 N-cm). Overtightening can result in
distortion of the controller, and reduce the
effectiveness of the seal.
Note: The installation location of the controller is
important. Be sure to keep it away from heat
sources (ovens, furnaces, etc.) and away from
direct contact with caustic vapors, oils, steam, or
any other process by-products in which exposure
may affect proper operation.
Multiple Controller Stacking
The controller is designed to allow for close spacing of multiple controllers
in applications that do not require protection to NEMA 4X. Controllers can be
stacked either horizontally or vertically. For vertical stacking, install the panel
latch with the screws to the sides of the controller. For horizontal stacking, the
panel latch screws should be at the top and bottom of the controller. The
minimum spacing from centerline to centerline of controllers is 1.96" (49.8
mm). This spacing is the same for vertical or
horizontal stacking.
Note: When stacking
controllers, provide
adequate panel
ventilation to ensure
that the maximum
operating temperature
range is not exceeded.

F
546 www.redlion.net
3.0 WIRING THE CONTROLLER
WIRING CONNECTIONS
All wiring connections are made to the rear screw terminals. When wiring the
controller, use the numbers on the label and those embossed on the back of the
case, to identify the position number with the proper function.
All conductors should meet voltage and current ratings for each terminal.
Also, cabling should conform to appropriate standards of good installation, local
codes and regulations. It is recommended that power (AC or DC) supplied to the
controller be protected by a fuse or circuit breaker. Strip the wire, leaving
approximately 1/4" (6 mm) bare wire exposed (stranded wires should be tinned
with solder). Insert the wire under the clamping washer and tighten the screw
until the wire is clamped tightly.
CONTROLLER POWER CONNECTIONS
For best results, the power should be relatively “clean” and within
the specified limits. Drawing power from heavily loaded circuits or
from circuits that also power loads that cycle on and off should be
avoided. It is recommended that power supplied to the controller be
protected by a fuse or circuit breaker.
INPUT CONNECTIONS
For two wire RTDs, install a copper sense lead of the same gauge and length
as the RTD leads. Attach one end of the wire at the probe and the other end to
input common terminal. Complete lead wire compensation is obtained. This is
the preferred method. If a sense wire is not used, then use a jumper. A
temperature offset error will exist. The error may be compensated by
programming a temperature offset.
CONTROL AND ALARM OUTPUT CONNECTIONS
VDC VAC
RTD and Resistance Thermocouple and Millivolt Voltage and Current
Alarm Models Main Control Relay Models
Main Control Logic/SSR Models
ANALOG DC OUTPUT CONNECTIONS USER INPUT CONNECTIONS
*A1 becomes main control O1, if selected for
heating in the analog out models.

F
5471-717-767-6511
FRONT PANEL KEYS
The F1 key is pressed to exit (or escape) directly to the start of the
Display Loop. While in the Display Loop, the F1 key can be pressed to
activate its programmed function.
The Loop key is pressed to advance to the next parameter, to activate
a changed selection/value, and when held for three seconds, enter the
Hidden Loop.
The Arrow keys are used to scroll through parameter
selections/values and in the Configuration Loop they are used to
scroll to the appropriate Parameter Module.
4.0 REVIEWING THE FRONT KEYS AND DISPLAY
5.0 PROGRAMMING: DISPLAY LOOP
DISPLAY LOOP
Note: Setpoint and Output Power are the only parameters visible in the Display Loop with Factory Settings. The remaining parameters can
be selected for the Display Loop within Module 3.
Parameter availability is model and programming dependent.
DISPLAY LOOP
At power up, all display segments light, and then the programmed input type
and the controller’s software version will flash. Then the Temperature/Process
Value is shown in the top display, and the Setpoint Value is shown in the bottom
display. This is the Display Loop. If the Setpoint is hidden or locked, the Display
Loop will default to Output Power. If Output Power is also hidden or locked out,
the bottom display is blank. During programming, the F1 key can be pressed to
return the controller to this point. (Only in the Display Loop will the F1 key
perform the user function programmed in Input Module .)
When the is pressed the controller advances to the next parameter in the
Display Loop. Except for Setpoint and % Output Power, the bottom display
alternates between the parameter name and its selection/value. The arrow keys
are pressed to change the selection/value for the shown parameter. The new
selection/value is activated when the is pressed. Display Loop parameters
may be locked out or hidden in Lockout Module . Some parameters are
model and programming dependent.

F
548 www.redlion.net
SETPOINT VALUE (SP1) *
SETPOINT VALUE (SP2) *
-999 to 9999
0.0
OP
2.0
SP
% OUTPUT POWER *
-100 to 100.0
-999 to 9999
Typically, the controller is operating with the Setpoint value in the bottom
display. There is no annunciator nor parameter indication for Setpoint in the
Display Loop. The parameter name alternates with the setpoint value in the
Hidden Loop. The Setpoint value can be changed, activated and stored by
pressing the arrow keys. This is the only parameter that can be configured as
read only in the Display Loop, but read/write in the Hidden Loop. It is possible
to store a second Setpoint value that can be selected in the Hidden Loop, by the
F1 key or the user input. Both Setpoint values are limited by the Setpoint Low
and High Limits in Input Module .
The % Output Power is shown with the %PW annunciator. The parameter
name alternates with the % Output Power value in the Hidden Loop. While the
controller is in Automatic Mode, this value is read only. When the controller is
placed in Manual Mode, the value can be changed, activated and stored by
pressing the arrow keys. For more details on % Output Power, see Control
Mode Explanations.
ª
«
120
Intt
INTEGRAL TIME
0to 9999 seconds
Integral action shifts the center point position of the proportional band to
eliminate error in the steady state. The higher the integral time, the slower the
response. The optimal integral time is best determined during PID Tuning. If
time is set to zero, the previous Integral output power value is maintained.
Offset Power can be used to provide Manual Reset.
ª
«
30
dErt
DERIVATIVE TIME
0to 9999 seconds per repeat
Derivative time helps to stabilize the response, but too high of a derivative
time, coupled with noisy signal processes, may cause the output to fluctuate too
greatly, yielding poor control. Setting the time to zero disables derivative action.
ALARM 1 VALUE
-999 to 9999
On models with alarms, the value for Alarm 1 can be entered here. The value
is either absolute (absolute alarm types) or relative to the Setpoint value
(deviation and band alarm types.) When Alarm 1 is programmed for HEAt or
NonE, this parameter is not available. For more details on alarms, see Alarm
Module .
ª
«
0.0
OPOF
OUTPUT POWER OFFSET
When the Integral Time is set to zero and the controller is in the Automatic
Mode, this parameter will appear after % Output Power. It is also shown with
the %PW annunciator illuminated. The power offset is used to shift the
proportional band to compensate for errors in the steady state. If Integral Action
is later invoked, the controller will re-calculate the internal integral value to
provide “bumpless” transfer and Output Power Offset will not be necessary.
ª
«
4.0
ProP
PROPORTIONAL BAND
0.0 to 999.9
(% of full input range)
The proportional band should be set to obtain the best response to a process
disturbance while minimizing overshoot. A proportional band of 0.0% forces
the controller into On/Off Control with its characteristic cycling at Setpoint. For
more information, see Control Mode and PID Tuning Explanations.
* Alternating indication only used in the Hidden Loop.
ALARM 2 VALUE
-999 to 9999
On models with alarms, the value for Alarm 2 can be entered here. The value
is either absolute (absolute alarm types) or relative to the Setpoint value
(deviation and band alarm types.) When Alarm 2 is programmed for CooL or
NonE, this parameter is not available. For more details on alarms, see the Alarm
Module 4-AL.
The values shown for the displays are the factory settings.
T16
P16
ª
«
0
0.0
AL-1
T16
P16
ª
«
0
0.0
AL-2
T16
P16
0
0.0
SP
T16
P16
-100 to 100.0

F
5491-717-767-6511
6.0 PROGRAMMING: HIDDEN LOOP
HIDDEN LOOP
Note: Parameters shown bold are the only parameters visible in the Hidden Loop with Factory Settings. Setpoint and Output Power are
factory set for the Display Loop. The remaining parameters can be selected for the Hidden Loop within Module 3.
Parameter availability is model and programming dependent.
To enter Hidden Loop, press for 3 seconds.
HIDDEN LOOP
When is pressed and held for three seconds, the controller advances to the
Hidden Loop. The Temperature/Process Value is shown in the top display. The
bottom display alternates between the parameter and its selection/value. or
is pressed to change the selection/value for the shown parameter. The new
selection/value is activated after is pressed. When is pressed, the
controller returns to the Display Loop and stores changed selection/values to
permanent memory. Hidden Loop parameters may be locked out in Lockout
Module 3-LC. Some parameters are model and programming dependent.
ª
«
0
CodE
ª
«
SP1
SPSL
ACCESS CODE
1to 125
If the Access Code is set from 1 to 125, in Lockout Module , Access
Code will appear here. By entering the proper Code, access to the Hidden Loop
is permitted. With the factory setting of 0, Access Code will not appear in the
Hidden Loop. A universal code of 111 can be entered to gain access,
independent of the programmed code number.
ª
«
0.0
SPrP
SETPOINT RAMP RATE
0.0 to 999.9
ª
«
Auto
trnF
CONTROL MODE TRANSFER
Auto USEr
SETPOINT SELECT
SP1 or SP2
The SPSL function allows the operator to switch from or to, setpoint 1 and
setpoint 2. In the Display Loop, there is no annunciator indicating the selected
Setpoint, however, the selected Setpoint value is displayed and activated.
In Automatic Mode, the percentage of Output Power is automatically
determined by the controller. In Manual/User USEr Mode, the percentage of
Output Power is adjusted manually while in the Display Loop. The Control
Mode can also be transferred through the F1 Key or User Input. For more
information, see Control Mode Explanations.
The setpoint ramp rate can reduce sudden shock to the process and reduce
overshoot on startup or after setpoint changes, by ramping the setpoint at a
controlled rate. R annunciator flashes while ramping. With the T16, the ramp rate
is always in tenths of degrees per minute, regardless of the resolution chosen for
the process display. With the P16, the ramp rate is in least-significant (display
units) digits per minute. A value of 0.0 or 0 disables setpoint ramping. Once the
ramping setpoint reaches the target setpoint, the setpoint ramp rate disengages
until the setpoint is changed again. If the ramp value is changed during ramping,
the new ramp rate takes effect. If the setpoint is ramping prior to starting Auto-
Tune, the ramping is suspended during Auto-Tune and then resumed afterward.
Deviation and band alarms are relative to the target setpoint, not the ramping
setpoint. A slow process may not track the programmed setpoint rate. At power
up, the ramping setpoint is initialized at the ambient temperature/process value.

F
550 www.redlion.net
7.0 PROGRAMMING: CONFIGURATION LOOP
CONFIGURATION LOOP
To access the Configuration Loop, press the up key when CNFP/NO is displayed
in the Hidden Loop. The arrow keys are used to select the parameter module (1-
9). To enter a specific module press while the module number is displayed.
In the Configuration Loop, CNFP will alternate with the parameter number in the
bottom display. The Temperature/Process Value is shown in the top display.
After entering a parameter module, press to advance through the
parameter names in the module. To change a parameter’s selection/value, press
the arrow keys while the parameter is displayed. In the modules, the top display
shows the parameter name, and the bottom display shows the selection/value.
Use to enter any selection/values that have been changed. The change is not
committed to permanent memory until the controller is returned to the Display
Loop. If a power loss occurs before returning to the Display Loop, the new
values must be entered again.
At the end of each module, the controller returns to CNFP/NO. At this location,
pressing again returns the display to the the Display Loop. Pressing the Up
key allows re-entrance to the Configuration Loop. Whenever is pressed, End
momentarily appears as the parameters are stored to permanent memory and the
controller returns to the Display Loop.
ª
«
1-2
ALrS
ALARMS RESET
1-2
With alarm models, the alarms can be manually reset. The up key resets
Alarm 1 and the down key resets Alarm 2.
ª
«
0
CodE
ACCESS CODE
-1 to -125
If the Access Code is set from -1 to -125, in Lockout Module 3-LC, Access
Code will appear here. By entering the proper Code, access to the Configuration
Loop is permitted (with a negative Code value, the Hidden Loop can be
accessed without the use of a code). With the factory setting of 0 or with an
active User Input configured for Program Lock (PLOC), Access Code will not
appear here. An active user input configured for Program Lock (PLOC) always
locks out the Configuration Loop, regardless of Access Code.
ª
«
NO
tUNE
AUTO-TUNE START
NO YES
The Auto-Tune procedure of the controller sets the Proportional Band,
Integral Time, Derivative Time, Digital Filter, Control Output Dampening
Time, and Relative Gain (Heat/Cool) values appropriate to the characteristics of
the process. This parameter allows front panel starting YES or stopping NO of
Auto-Tune. For more information, see PID Tuning Explanations.

F
5511-717-767-6511
7.1 MODULE 1 - INPUT PARAMETERS () T16 ONLY
PARAMETER MENU
tc-j
tYPE
INPUT TYPE
°F
SCAL
TEMPERATURE SCALE
°F Fahrenheit
°C Celsius
SELECTION TYPE SELECTION TYPE
tc-t TTC tc-N N TC
tc-E E TC tc-C C TC
tc-J TC LIN Linear mV
tc-K K TC r385 RTD 385
tc-r R TC r392 RTD 392
tc-S S TC r672 RTD 672
tc-b B TC rLIN Linear Ohms
Select the input type that corresponds to the input sensor.
Select either degrees Fahrenheit or Celsius. For linear mV and ohms input
types, this has no effect. If changed, adjust related parameter values, as the
controller does not automatically convert them.
0
dCPt
DECIMAL RESOLUTION
0to 0.0 for temperature and resistance inputs
0.00 for mV inputs
Select whole degrees, or tenths of degrees for Temperature display, Setpoint
values, and related parameters. For Linear Resistance inputs rLIN, the same
parameter selections apply in ohms or tenths of an ohm. For mV inputs LIN,
only hundredths of a mV resolution is available.
0
SHft
SHIFT/OFFSET
-999 to 9999 degrees
This value offsets the controller’s temperature display value by the entered
amount. This is useful in applications in which the sensor cannot provide the
actual temperature signal due to mounting constraints, inaccuracy, etc.
0
SPLO
SETPOINT LOW LIMIT
-999 to 9999
The controller has a programmable low setpoint limit value to restrict the
setting range of the setpoint. Set the limit so that the setpoint value cannot be
set below the safe operating area of the process.
9999
SPHI
SETPOINT HIGH LIMIT
-999 to 9999
The controller has a programmable high setpoint limit value to restrict the
setting range of the setpoint. Set the limit so that the setpoint value cannot be
set above the safe operating area of the process.
PLOC
InPt
USER INPUT FUNCTION (OPTIONAL)
The controller performs the selected User Input function (User Input
available only on models with alarms), when the User terminal 1 is connected
(pulled low) to Common terminal 8.
No Function: No function is performed.
Program Lock: The Configuration Loop is locked, as long as activated
(maintained action).
Integral Action Lock: The integral action of the PID computation is disabled
(frozen), as long as activated (maintained action).
Auto/Manual Select: This function selects (maintained action) Automatic
(open) or Manual Control (activated).
Setpoint 1 or 2 Select: This function selects (maintained action) Setpoint
1(open) or Setpoint 2 (activated) as the active setpoint.
Setpoint Ramp Disable: The setpoint ramping feature is disabled, as long as
activated (maintained action). Any time the user input is activated with a
ramp in process, ramping is aborted.
Reset Alarms: Active alarms are reset, as long as activated (maintained action).
Active alarms are reset until the alarm condition is cleared and triggered
again (momentary action).
1
FLtr
DIGITAL FILTERING
0= least to 4= most
The filter is an adaptive digital filter that discriminates between measurement
noise and actual process changes. If the signal is varying too greatly due to
measurement noise, increase the filter value. If the fastest controller response is
needed, decrease the filter value.
SELECTION FUNCTION SELECTION FUNCTION
NONE No Function SPt Setpoint 1 or 2 Select
PLOC Program Lock SPrP Setpoint Ramp Disable
ILOC Integral Action Lock ALrS Reset Both Alarms
trnF Auto/Manual Select

F
552 www.redlion.net
7.1 MODULE 1 - INPUT PARAMETERS () P16 ONLY
PARAMETER MENU
Curr
tYPE
INPUT TYPE
NO
PCt
PERCENT ANNUNCIATOR
YES On
NO Off
This only illuminates the % annunciator. It does not perform any type of
percent function, but is useful in applications that have been scaled in percent.
0.1
rnd
ROUNDING INCREMENT
1to 100
In steps of 1 least significant digit,
regardless of decimal point.
Rounding selections other than 1 cause the process value display to round to
the nearest rounding increment selected. (For example, rounding of 5 causes 122
to round to 120 and 123 to round to 125.) Rounding starts at the least significant
digit of the process value. Setpoint values, Setpoint limits, Alarm values, Input
Scaling values, and Analog Scaling values are not affected by rounding.
0.0
dSP1
DISPLAY VALUE SCALING POINT 1
-999 to 9999
Enter the first coordinate Display Value by using the arrow keys.
4.00
INP1
INPUT VALUE SCALING POINT 1
0.00 to 20.00 mA
0.00 to 10.00 V
For Key-in Method, enter the first coordinate Input Value by using the arrow
keys. To allow the P16 to “learn” the signal, use the Applied Method. For Applied
Method, press . The ° annunciator is turned on to indicate the applied method.
Adjust the applied signal level externally until the appropriate value appears
under INP1. Using either method, press to store the value for INP1. (The
controller can be toggled back to the Key-in Method by pressing before .)
0.0
dCPt
DECIMAL RESOLUTION
0 0.0 0.00 0.000
This selection affects the decimal point placement for the Process value, and
related parameters.
1
FLtr
DIGITAL FILTERING
0= least to 4= most
The filter is an adaptive digital filter that discriminates between measurement
noise and actual process changes. If the signal is varying too greatly due to
measurement noise, increase the filter value. If the fastest controller response is
needed, decrease the filter value.
NONE
F1In
F1 KEY FUNCTION The controller performs the selected F1 Key Function, when is pressed
while in the Display Loop. In any other loop or module location, pressing
will perform an escape to the Display Loop.
No Function: No function is performed.
Auto/Manual Select: This function toggles (momentary action) the controller
between Automatic and Manual Control.
Setpoint 1 or 2 Select: This function toggles (momentary action) the controller
between Setpoint 1 and Setpoint 2.
Reset Alarms: This function can be used to reset one or both of the alarms
when activated (momentary action) The alarm will remain reset until the
alarm condition is cleared and triggered again.
Reset Both Alarms
ALrS
Setpoint 1 or 2 Select
SPt
Reset Alarm 2
A2rS
Auto/Manual Select
trnF
Reset Alarm 1
A1rS
No Function
NONE
FUNCTIONSELECTIONFUNCTIONSELECTION
Voltage
Current
VOLt
Curr
TYPESELECTION
Select the input type that corresponds to the input signal.
SCALING
To scale the controller, two scaling points are necessary. Each scaling point has
a coordinate pair of Display Values and Input Values. It is recommended that the
two scaling points be at the low and high ends of the input signal being measured.
Process value scaling will be linear between and continue past the entered points
to the limits of the input range. (Factory settings example will display 0.0 at 4.00
mA input and display 100.0 at 20.00 mA input.) Reverse acting indication can be
accomplished by reversing the two signal points or the Display value points, but
not both. If both are reversed, forward (normal) acting indication will occur. In
either case, do not reverse the input wires to change the action.
100.0
dSP2
DISPLAY VALUE SCALING POINT 2
-999 to 9999
Enter the second coordinate Display Value by using the arrow keys.

F
5531-717-767-6511
20.00
INP2
INPUT VALUE SCALING POINT 2
0.00 to 20.00 mA
0.00 to 10.00 V
For Key-in Method, enter the second coordinate Input Value by using the
arrow keys. To allow the P16 to “learn” the signal, use the Applied Method. For
Applied Method, press . The ° annunciator is turned on to indicate the
applied method. Adjust the applied signal level externally until the appropriate
value appears under INP2. Using either method, press to store the value for
INP2. (The controller can be toggled back to the Key-in Method by pressing
before .)
SPLO
SETPOINT LOW LIMIT
-999 to 9999
The controller has a programmable low setpoint limit value to restrict the
setting range of the setpoint. Set the limit so that the setpoint value cannot be
set below the safe operating area of the process.
999.9
SPHI
SETPOINT HIGH LIMIT
-999 to 9999
The controller has a programmable high setpoint limit value to restrict the
setting range of the setpoint. Set the limit so that the setpoint value cannot be
set above the safe operating area of the process.
PLOC
InPt
USER INPUT FUNCTION (OPTIONAL)
The controller performs the selected User Input function (User Input
available only on models with alarms), when the User terminal 1 is connected
(pulled low) to Common terminal 8.
No Function: No function is performed.
Program Lock: The Configuration Loop is locked, as long as activated
(maintained action).
Integral Action Lock: The integral action of the PID computation is disabled
(frozen), as long as activated (maintained action).
Auto/Manual Select: This function selects (maintained action) Automatic
(open) or Manual Control (activated).
Setpoint 1 or 2 Select: This function selects (maintained action) Setpoint
1(open) or Setpoint 2 (activated) as the active setpoint.
Setpoint Ramp Disable: The setpoint ramping feature is disabled, as long as
activated (maintained action). Any time the user input is activated with a
ramp in process, ramping is aborted.
Reset Alarms: Active alarms are reset, as long as activated (maintained action).
Active alarms are reset until the alarm condition is cleared and triggered
again (momentary action).
SELECTION FUNCTION SELECTION FUNCTION
NONE No Function SPt Setpoint 1 or 2 Select
PLOC Program Lock SPrP Setpoint Ramp Disable
ILOC Integral Action Lock ALrS Reset Both Alarms
trnF Auto/Manual Select
NONE
F1In
F1 KEY FUNCTION
The controller performs the selected F1 key function, when is pressed
while in the Display Loop. In any other loop or module location, pressing
will perform an escape to the Display Loop.
No Function: No function is performed.
Auto/Manual Select: This function toggles (momentary action) the controller
between Automatic and Manual Control.
Setpoint 1 or 2 Selection: This function toggles (momentary action) the
controller between Setpoint 1 and Setpoint 2.
Reset Alarms: This function can be used to reset one or both of the alarms
when activated (momentary action). The alarm will remain reset until the
alarm condition is cleared and triggered again.
Reset Both Alarms
ALrS
Setpoint 1 or 2 Select
SPt
Reset Alarm 2
A2rS
Auto/Manual Select
trnF
Reset Alarm 1
A1rS
No Function
NONE
FUNCTIONSELECTIONFUNCTIONSELECTION

F
554 www.redlion.net
2.0
CYCt
CYCLE TIME
0.0 to 250.0 seconds
OUTPUT POWER DAMPENING
0to 250 seconds
The Cycle Time is entered in seconds with one tenth of a second resolution.
It is the total time for one on and one off period of the time proportioning
control output O1. With time proportional control, the percentage of power is
converted into an output on-time relative to the cycle time value set. (If the
controller calculates that 65% power is required and a cycle time of 10.0
seconds is set, the output will be on for 6.5 seconds and off for 3.5 seconds.)
For best control, a cycle time equal to one-tenth or less, of the natural period of
oscillation of the process is recommended. When using the Analog Output
signal for control, the Cycle Time setting has no effect. If the O1 output is not
being used, a cycle time of 0 can be entered to prevent the output and indicator
from cycling.
rEv
OPAC
CONTROL ACTION
drct Direct (cooling)
rEv Reverse (heating)
This determines the control action for the PID loop. Programmed for direct
action (cooling), the output power will increase if the Process value is above the
Setpoint value. Programmed for reverse action (heating), the output power
decreases when the Process Value is above the Setpoint Value. For heat and cool
applications, this is typically set to reverse. This allows O1 or A1 (models with
Analog Output) to be used for heating, and A2/O2 to be used for cooling.
0
OPLO
OUTPUT POWER LOWER LIMIT
0to 100 percent O1
-100 to 100 percent O1/O2
This parameter may be used to limit controller power at the lower end due to
process disturbances or setpoint changes. Enter the safe output power limits for
the process. If Alarm 2 is selected for cooling, the range is from -100 to +100%.
At 0%, both O1 and O2 are off; at 100%, O1 is on; and at -100%, O2 is on.
When the controller is in Manual Control Mode, this limit does not apply.
100
OPHI
OUTPUT POWER UPPER LIMIT
0to 100 percent O1
-100 to 100 percent O1/O2
This parameter may be used to limit controller power at the upper end due to
process disturbances or setpoint changes. Enter the safe output power limits for
the process. If Alarm 2 is selected for cooling, the range is from -100 to +100%.
At 0%, both O1 and O2 are off; at 100%, O1 is on; and at -100%, O2 is on.
When the controller is in Manual Control Mode, this limit does not apply.
AUTO-TUNE CODE
0fastest to 2slowest
Prior to starting Auto-Tune, this code should be set to achieve the necessary
dampening level under PID Control. This value allows customization of the PID
values that Auto-Tune will calculate. For the process to be controlled
aggressively (fastest process response with possible overshoot), set the Auto-
Tune Code to 0. For the process to be controlled conservatively (slowest
response with the least amount of overshoot), set this value to 2. If the Auto-Tune
Code is changed, Auto-Tune needs to be reinitiated for the changes to affect the
PID settings. For more information, see PID Tuning Explanations Section.
0
OPFL
SENSOR FAIL POWER LEVEL
This parameter sets the power level for the control outputs in the event of a
sensor failure. If Alarm 2 is not selected for cooling, the range is from 0% (O1
output full off) to 100% (O1 output full on). If A2 is selected for cooling, the
range is from -100 to +100%. At 0%, both O1 and O2 are off; at 100%, O1 is
on; and at -100%, O2 is on. The alarm outputs are upscale drive with an open
sensor, and downscale drive with a shorted sensor (RTD only), independent of
this setting. Manual Control overrides the sensor fail preset.
The Dampening Time, entered as a time constant in seconds, dampens
(filters) the calculated output power. Increasing the value increases the
dampening effect. Generally, dampening times in the range of one-twentieth to
one-fiftieth of the controller’s integral time (or process time constant) are
effective. Dampening times longer than these may cause controller instability
due to the added lag effect.
ON/OFF CONTROL HYSTERESIS
1to 250
The controller can be placed in the On/Off Control Mode by setting the
Proportional Band to 0.0%. The On/Off Control Hysteresis (balanced around
the setpoint) eliminates output chatter. In heat/cool applications, the control
hysteresis value affects both Output O1 and Output O2 control. It is suggested
to set the hysteresis band to Factory Setting prior to starting Auto-Tune. After
Auto-Tune, the hysteresis band has no effect on PID Control. On/Off Control
Hysteresis is illustrated in the On/Off Control Mode section.
0
tcod
3
1
OPdP
T16
P16
2
0.2
CHYS
T16
P16
7.2 MODULE 2 - OUTPUT PARAMETERS ()
PARAMETER MENU
0to 100 percent O1
-100 to 100 percent O1/O2

F
5551-717-767-6511
4-20
ANtP
ANALOG OUTPUT RANGE (OPTIONAL)
0-10 V0-20 mA
4-20 mA
Select the type of output and range. The Analog output jumpers are factory
set to current. They must be changed if voltage output is desired. The Analog
output can be calibrated to provide up to approximately 5% over range
operation (0 mA current can only go slightly negative).
0
ANUt
ANALOG UPDATE TIME (OPTIONAL)
0to 250 seconds
0= update rate of 0.1 second
The update time of the Analog Output can be used to reduce excess valve
actuator or pen recorder activity.
0
CodE
ACCESS CODE
-125 to
dISP
SP
dISP
OP
HIdE
PId
HIdE
AL
The following parameters can be configured for LOC,HIdE, and dISP.
LOC
SPSL
HIdE
SPrP
LOC
trnF
HIdE
tUNE
LOC
ALrS
The following parameters can be configured for LOC or HIdE only.
OP
ANAS
ANALOG OUTPUT ASSIGNMENT (OPTIONAL)
This setting selects the parameter that the Analog Output will retransmit or
track.
ANALOG LOW SCALING (OPTIONAL)
to
The Analog Output assignment value that corresponds to 0 V, 0 mA or 4 mA
output as selected.
ANALOG HIGH SCALING (OPTIONAL)
-999 to 9999
The Analog Output assignment value that corresponds to 10 V or 20 mA
output as selected. An inverse acting output can be achieved by reversing the
low and high scaling points.
7.3 MODULE 3 - LOCKOUT PARAMETERS ()
PARAMETER MENU
SELECTION DESCRIPTION
dISP
HIdE Hide: accessible in Hidden Loop.
LOC Locked: not accessible in either loop.
dSPr (SP only) Display/read: read only in Display Loop,
but read/write in Hidden Loop.
Display: accessible in Display Loop.
0.0
100.0
ANHI
OP
InP
SP Active Setpoint
SETPOINT
ACCESS
OUTPUT
POWER
ACCESS
PID VALUES
ACCESS
ALARM
VALUES
ACCESS SETPOINT
SELECT
ACCESS
AUTO-TUNE
START
ACCESS
SETPOINT
RAMP
ACCESS
CONTROL
TRANSFER
ACCESS
RESET
ALARMS
ACCESS
0Full access to Display, Hidden,
and Configuration Loops
-1 to -125 Code necessary to access
Configuration Loop only.
1to 125 Code necessary to access
Hidden and Configuration Loops.
Input Signal Retransmission
Main Control % Output Power

F
556 www.redlion.net
7.4 MODULE 4 - ALARM PARAMETERS () (OPTIONAL)
PARAMETER MENU
NONE None
AbHI Absolute High
(balanced hysteresis)
AuLO
AuHI
AbLO
Absolute Low
(unbalanced hysteresis)
Absolute High
(unbalanced hysteresis)
Absolute Low
(balanced hysteresis)
No action, the remaining Alarm
parameters are not available.
ALARM ACTION FIGURES
Note: Hys in the above figures refers to the Alarm Hysteresis.
If cooling is selected, the remaining
Alarm 2 parameters are not available.
Cool
(A2 only)
CooL
If heating is selected, the remaining
Alarm 1 parameters are not available.
Heat (A1 Analog
models only)
HEAt
Alarm 1 and 2 value tracks the
Setpoint value
Band Acting
(outside)
b-ot
Alarm 1 and 2 value tracks the
Setpoint value
Band Acting
(inside)
b-IN
Alarm 1 and 2 value tracks the
Setpoint value
Deviation Low
d-LO
Alarm 1 and 2 value tracks the
Setpoint value
Deviation High
d-HI
The alarm energizes when the Process
Value exceeds the alarm value + 1/2
the hysteresis value.
The alarm energizes when the Process
Value falls below the alarm value.
The alarm energizes when the Process
Value exceeds the alarm value.
The alarm energizes when the Process
Value falls below the alarm value -1/2
the hysteresis value.
AVAILABLE ALARM ACTIONS

F
5571-717-767-6511
nor
ALARM ANNUNCIATOR ALARM 1
With normal selection, the alarm annunciator indicates “on” alarm output 1.
With reverse selection, the alarm annunciator indicates “off” alarm output.
NO
Stb1
ALARM STANDBY ALARM 1
Standby prevents nuisance (typically low level) alarms after a power up or
setpoint change. After powering up the controller or changing the setpoint, the
process must leave the alarm region (enter normal non-alarm area of operation).
After this has occurred, the standby is disabled and the alarm responds normally
until the next controller power up or setpoint change.
ALARM HYSTERESIS
NO
Stb2
ALARM STANDBY ALARM 2
YES Standby on
NO Standby off
Standby prevents nuisance (typically low level) alarms after a power up or
setpoint change. After powering up the controller or changing the setpoint, the
process must leave the alarm region (enter normal non-alarm area of operation).
After this has occurred, the standby is disabled and the alarm responds normally
until the next controller power up or setpoint change.
ALARM VALUE ALARM 1
The alarm values are entered as process units or degrees. They can also be
entered in the Display or Hidden Loops. When the alarm is configured as
deviation or band acting, the associated output tracks the Setpoint as it is
changed. The value entered is the offset or difference from the Setpoint.
Auto
rSt1
ALARM RESET MODE ALARM 1
In Automatic mode, an energized alarm turns off automatically after the
Temperature/Process value leaves the alarm region. In Latched mode, an
energized alarm requires an F1 key or user input alarm reset to turn off. After an
alarm reset, the alarm remains reset off until the trigger point is crossed again.
nor
Lit2
ALARM ANNUNCIATOR ALARM 2
nor Normal
rEv Reverse
With normal selection, the alarm annunciator indicates “on” alarm output 2.
With reverse selection, the alarm annunciator indicates “off” alarm output.
Auto
rSt2
ALARM RESET MODE ALARM 2
Auto Automatic
LAtc Latched
In Automatic mode, an energized alarm turns off automatically after the
Temperature/Process value leaves the alarm region. In Latched mode, an
energized alarm requires an F1 key or user input alarm reset to turn off. After an
alarm reset, the alarm remains reset off until the trigger point is crossed again.
ALARM VALUE ALARM 2
The alarm values are entered as process units or degrees. They can also be
entered in the Display or Hidden Loops. When the alarm is configured as
deviation or band acting, the associated output tracks the Setpoint as it is
changed. The value entered is the offset or difference from the Setpoint.
-999 to 9999
The Hysteresis Value is either added to or subtracted from the alarm value,
depending on the alarm action selected. The same value applies to both alarms.
See the Alarm Action Figures for a visual explanation of how alarm actions are
affected by the hysteresis.
0to 250
AuHI
ACt2
ALARM ACTION ALARM 2
Select the action for the alarms. See Alarm Action Figures for a visual
explanation.
NONE AbHI AbLO AuHI AuLO
d-HI d-LO b-IN b-ot CooL
0
0.0
AL-1
T16
P16
20
2.0
AL-2
T16
P16
1
0.1
AHYS
T16
P16
AuHI
ACt1
ALARM ACTION ALARM 1
Select the action for the alarms. See Alarm Action Figures for a visual
explanation.
HEAtb-otb-INd-LOd-HI
AuLOAuHIAbLOAbHINONE
nor Normal
rEv Reverse
Auto Automatic
LAtc Latched
YES Standby on
NO Standby off
-999 to 9999

F
558 www.redlion.net
CYCLE TIME
0.0 to 250.0 seconds
This cycle time functions like the O1 Output Cycle Time but allows
independent cycle time for cooling. A setting of zero will keep output O2 off.
RELATIVE GAIN
0.0 to 10.0
This defines the gain of the cooling relative to the heating. It is generally set
to balance the effects of cooling to that of heating. This is illustrated in the
Heat/Cool Relative Gain Figures. A value of 0.0 places the cooling output into
On/Off Control.
0
db-2
DEADBAND/OVERLAP
-999 to 9999
This defines the overlap area in which both heating and cooling are active
(negative value) or the deadband area between the bands (positive value). If a
heat/cool overlap is specified, the percent output power is the sum of the heat
power (O1) and the cool power (O2). If Relative Gain is zero, the cooling
output operates in the On/Off Control Mode, with the On/Off Control
Hysteresis CHYS in Output Module 2-OP becoming the cooling output hysteresis.
The function of Deadband is illustrated in the Control Mode Explanations. For
most applications, set this parameter to 0.0 prior to starting Auto-Tune. After
the completion of Auto-Tune, this parameter may be changed.
7.5 MODULE 5 - COOLING (SECONDARY) PARAMETERS ()
PARAMETER MENU
To enable Cooling in Heat/Cool applications, the Alarm 2 Action must first
be set for Cooling. (For P16 Controllers, the cooling output is sometimes
referred to as secondary output.) When set to cooling, the output no longer
operates as an alarm but operates as a cooling output. The O2 terminals are the
same as A2, however a separate O2 annunciator indicates Cooling Operation.
Cooling output power ranges from -100% (full cooling) to 0% (no cooling,
unless a heat/cool overlap is used). The Power Limits in Output Module
also limit the cooling power. In applications requiring only a Cooling output,
the main 01 output should be used.
2.0
CYC2
1.0
GAN2
HEAT/COOL RELATIVE GAIN FIGURES
Heat/Cool Deadband = 0
Heat/Cool Deadband < 0
Heat/Cool Deadband > 0

F
5591-717-767-6511
The controller is fully calibrated from the factory. Recalibration is
recommended every two years by qualified technicians using appropriate
equipment. Calibration may be performed by using the front panel or with the
TP16KIT. The front panel method is explained below. (Refer to the TP16KIT
bulletin for calibration instructions using TP16KIT cable and software.)
Calibration may be aborted by disconnecting power to the controller before
exiting Factory Service Module 9-FS. In this case, the existing calibration
settings remain in effect.
Note: Allow the controller to warm up for 30 minutes minimum and follow
the manufacturer’s warm-up recommendations for the calibration source or
measuring device.
Cold Junction (T16)
Cold Junction calibration requires a thermocouple of known accuracy of
types T, E, J, K, C or N (connected to terminals 8 and 9) and a calibrated
external reference thermocouple probe measuring in °C with resolution to
tenths. The two probes should be brought in contact with each other or in some
way held at the same temperature. They should be shielded from air movement
and allowed sufficient time to equalize in temperature. (As an alternative, the
T16 thermocouple may be placed in a calibration bath of known temperature.)
If performing the millivolt calibration prior, verify that the correct input type is
configured in Input Module 1-IN before performing the following procedure.
(After the millivolt calibration the controller will default to type J.) If using RTD
only, the cold junction calibration need not be performed.
PROMPT COMPARE FRONT PANEL ACTION
[CodE] Press until 48, press .
[CAL] Press .
[CJC] Press for YES, press .
Top display to
external
reference
Press or to adjust the
bottom display until the top
process display matches the
external reference then press .
RTD Resistance (T16)
RTD calibration requires a precision 277.0 ohm resistor with an accuracy of
0.1 Ω(or better). Connect a jumper between terminals 9 and 10 with a 0 ohm
jumper between 9 and 8 at StP1 and the 277.0 ohm resistor between 9 and 8 at
StP2. If using thermocouple only, the RTD calibration need not be performed.
After 5 seconds (minimum), press .
277.0 ohm
[StP2]
After 5 seconds (minimum), press .
0.0 ohm
[StP1]
Press .
Press .
Press for YES, press .
[CJC]
[CAL]
[rtd]
Press until 48, press .
[CodE]
FRONT PANEL ACTIONAPPLYPROMPT
Input Calibration (P16)
Process calibration requires a precision signal source with an accuracy of
0.03% (or better) that is capable of generating 10.0 V connected to terminals 8
(COMM) and 9 (+10V) and 20.00 mA connected to terminals 8 (COMM) and
10 (20mA). The current calibration can be skipped by pressing at the not
applicable prompts if using the controller for process voltage only.
After 5 seconds (minimum), press .
After 5 seconds (minimum), press .
20.0 mA
10.0 V
[StPb]
[StP5]
After 5 seconds (minimum), press .
After 5 seconds (minimum), press .
0.0 mA
7.5 V
[StPA]
[StP4]
After 5 seconds (minimum), press .
5.0 V
[StP3]
After 5 seconds (minimum), press .
2.5 V
[StP2]
After 5 seconds (minimum), press .
0.0 V
[StP1]
Press for YES, press .
[CAL]
Press until 48, press .
[CodE]
FRONT PANEL ACTIONAPPLYPROMPT
CALIBRATION
7.5 MODULE 9 FACTORY SERVICE OPERATIONS ()
Millivolt Calibration (T16)
Millivolt calibration requires a precision voltage source with an accuracy of
0.03% (or better) connected to terminals 8 (comm.) and 9 (+). When calibrating
the input, the millivolt calibration must be performed first, then the Cold Junction
or RTD Resistance.
PROMPT APPLY FRONT PANEL ACTION
[CodE] Press until 48, press .
[CAL] Press for YES, press .
[StP1] 0.0 mV After 5 seconds (minimum), press .
[StP2] 14.0 mV After 5 seconds (minimum), press .
[StP3] 28.0 mV After 5 seconds (minimum), press .
[StP4] 42.0 mV After 5 seconds (minimum), press .
[StP5] 56.0 mV After 5 seconds (minimum), press .
48
CodE
PARAMETER MENU

F
560 www.redlion.net
66
CodE
RESTORE FACTORY SETTINGS
Press and hold to display CodE 66. Press . The controller will display
rSEt and then return to CNFP. Press to return to the Display Loop. This will
overwrite all user settings with Factory Settings.
77
CodE
NOMINAL CALIBRATION SETTINGS
Press and hold to display CodE 77. Press . Press and hold to display
CodE 77 again. Press . The controller will then return to CNFP. Press to
return to the Display Loop. This will not overwrite any user settings but will
erase the controller calibration values. This procedure does not require any
calibration signals nor external meters. This can be used to clear calibration
error flag E-CL.
CAUTION: This procedure will result in up to ±10% reading error and the
controller will no longer be within factory specifications. For this reason, this
procedure should only be performed if meter error is outside of this range to
temporarily restore operation until the unit can be accurately calibrated.
PROBLEM CAUSE REMEDIES
NO DISPLAY 1. Check power.
2. Verify power reading.
3. Check connections.
4. Check installation.
1. Incorrect setup parameters. 1. Check setup parameters.
E-E2 IN DISPLAY 1. Loss of setup parameters due to noise spike or other
EMI event.
E-CL IN DISPLAY 1. Loss of calibration parameters due to noise spike or
other EMI event.
dddd or -ddd IN DISPLAY 1. Change resolution to display whole number and verify reading.
2. Perform cold junction calibration.
3. Check setup parameters.
4. Perform Input calibration.
OPEN IN DISPLAY (T16)
SENS IN DISPLAY (P16) 1. Check input parameters.
2. Check input wiring.
3. Replace transmitter.
4. Perform input calibration.
OLOL IN TOP DISPLAY 1. Input exceeds range of controller.
2. Temperature exceeds range of input probe.
3. Defective or incorrect transmitter or probe.
4. Excessive high temperature for probe.
5. Loss of setup parameters.
ULUL IN TOP DISPLAY 1. Check input parameters.
2. Change to input sensor with a lower temperature range.
3. Replace transmitter or probe.
4. Raise temperature.
5. Perform input calibration.
SHrt IN DISPLAY (T16) 1. RTD probe shorted. 1. Check wiring and/or replace RTD probe.
CONTROLLER SLUGGISH OR
NOT STABLE
1. Incorrect PID values.
2. Incorrect probe location.
1. See PID control.
2. Evaluate probe location.
1. Display value exceeds 4 digit display range.
2. Defective or miscalibrated cold junction circuit.
3. Loss of setup parameters.
4. Internal malfunction.
1. Connect probe.
2. Replace probe.
3. Check connections.
4. Check process parameters.
1. Input exceeds range of controller.
2. Incorrect input wiring.
3. Defective transmitter.
4. Internal malfunction.
1. Check input parameters.
2. Change to input sensor with a higher temperature range.
3. Replace transmitter or probe.
4. Reduce temperature.
5. Perform input calibration.
1. Input is below range of controller.
2. Temperature below range of input probe.
3. Defective or incorrect transmitter or probe.
4. Excessive low temperature for probe.
5. Loss of setup parameters.
1. Press F1 to escape, then check all setup parameters.
a. Check sensor input and AC line for excessive noise.
b. If fault persists, replace controller.
1. Press F1 to escape, then check controller accuracy.
a. Recalibrate controller. (See Factory Service Module code 77.)
b. Reset parameters to factory default settings.
CONTROLLER NOT WORKING
1. Power off.
2. Brown-out condition.
3. Loose connection or improperly wired.
4. Bezel assembly not fully seated into rear of controller.
1. Probe disconnected.
2. Broken or burned-out probe.
3. Corroded or broken terminations.
4. Excessive process temperature.
For further technical assistance, contact technical support.
TROUBLESHOOTING
Analog Output Calibration (T16 and P16)
Set the controller Analog jumpers to the output type being calibrated.
Connect an external meter with an accuracy of 0.05% (or better) that is capable
of measuring 10.00 V or 20.00 mA to terminals 6 (+V/I) and 7 (-V/I). The
voltage or current calibration that is not being used must be skipped by pressing
until End appears.
PROMPT EXTERNAL
METER FRONT PANEL ACTION
[CodE] Press until , press .
[CAL] Press .
[CJC] Press . (T16 only)
[rtd] Press . (T16 only)
[ANCL] Press for , press .
[C 0v] 0.00 V
C 20c
C 0c]
C 10v
20.00 mA
0.00 mA
10.00 V
Press or until external meter
matches listing, press .
Press or until external meter
matches listing, press .
Press or until external meter
matches listing, press .
Press or until external meter
matches listing, press .

F
5611-717-767-6511
ON/OFF CONTROL
The controller operates in On/Off Control when the Proportional Band is set
to 0.0%. In this control mode, the process will constantly oscillate around the
setpoint value. The On/Off Control Hysteresis (balanced around the setpoint)
can be used to eliminate output chatter. Output O1 Control Action can be set to
reverse for heating (output on when below the setpoint) or direct for cooling
(output on when above the setpoint) applications.
ON/OFF CONTROL -
REVERSE OR DIRECT ACTING FIGURES
Note: CHYS in the On/Off Control Figures refers to the On/Off Control Hysteresis
(CHYS) in parameter Module 2.
For heat and cool systems, O1 Control Action is set to reverse (heat) and the
Alarm 2 Action is set to cooling (O2). The Proportional Band is set to 0.0 and
the Relative Gain in Cooling to 0.0. The Deadband in Cooling sets the amount
of operational deadband or overlap between the outputs. The setpoint and the
On/Off Control Hysteresis applies to both O1 and O2 outputs. The hysteresis is
balanced in relationship to the setpoint and deadband value.
CONTROL MODE EXPLANATIONS
ON/OFF CONTROL - HEAT/COOL OUTPUT FIGURES
PID CONTROL
In PID Control, the controller processes the input and then calculates a
control output power value by use of a modified Proportional Band, Integral
Time, and Derivative Time control algorithm. The system is controlled with the
new output power value to keep the process at the setpoint. The Control Action
for PID Control can be set to reverse for heating (output on when below the
setpoint) or direct for cooling (output on when above the setpoint) applications.
For heat and cool systems, the heat (O1) and cool (O2) outputs are both used.
The PID parameters can be established by using Auto-Tune, or they can be
Manually tuned to the process.
TYPICAL PID RESPONSE CURVE

F
562 www.redlion.net
TIME PROPORTIONAL PID CONTROL
In Time Proportional applications, the output power is converted into output
On time using the Cycle Time. For example, with a four second cycle time and
75% power, the output will be on for three seconds (4 × 0.75) and off for
one second.
The cycle time should be no greater than 1/10 of the natural period of
oscillation for the process. The natural period is the time it takes for one
complete oscillation when the process is in a continuously oscillating state.
LINEAR PID CONTROL
In Linear PID Control applications, the Analog Output Assignment ANAS is set
to % Output Power, OP. The Analog Low Scaling, ANLO , is set to 0.0 and the
Analog High Scaling, ANHI , is set to 100.0. The Analog Output will then be
proportional to the PID calculated % output power for Heat or Cooling per the
Control Action OPAC. For example, with 0 VDC to 10 VDC (scaled 0 to 100%)
and 75% power, the analog output will be 7.5 VDC.
MANUAL CONTROL MODE
In Manual Control Mode, the controller operates as an open loop system
(does not use the setpoint and process feedback). The user adjusts the
percentage of power through the % Power display to control the power for
Output O1. When Alarm 2 is configured for Cooling (O2), Manual operation
provides 0 to 100% power to O1 (heating) and -100 to 0% power to O2
(Cooling). The Low and High Output Power limits are ignored when the
controller is in Manual.
MODE TRANSFER
When transferring the controller mode between Automatic and Manual, the
controlling outputs remain constant, exercising true “bumpless” transfer. When
transferring from Manual to Automatic, the power initially remains steady, but
Integral Action corrects (if necessary) the closed loop power demand at a rate
proportional to the Integral Time.
AUTOMATIC CONTROL MODE
In Automatic Control Mode, the percentage of output power is automatically
determined by PID or On/Off calculations based on the setpoint and process
feedback. For this reason, PID Control and On/Off Control always imply
Automatic Control Mode.
PID TUNING EXPLANATIONS
AUTO-TUNE
Auto-Tune is a user-initiated function that allows the controller to
automatically determine the Proportional Band, Integral Time, Derivative Time,
Digital Filter, Control Output Dampening Time, and Relative Gain (Heat/Cool)
values based upon the process characteristics. The Auto-Tune operation cycles
the controlling output(s) at a control point three-quarters of the distance
between the present process value and the setpoint. The nature of these
oscillations determines the settings for the controller’s parameters.
Prior to initiating Auto-Tune, it is important that the controller and system be
first tested. (This can be accomplished in On/Off Control or Manual Control
Mode.) If there is a wiring, system or controller problem, Auto-Tune may give
incorrect tuning or may never finish. Auto-Tune may be initiated at start-up,
from setpoint or at any other process point. However, ensure normal process
conditions (example: minimize unusual external load disturbances) as they will
have an effect on the PID calculations.
AUTO-TUNE CODE FIGURE
Start Auto-Tune
Below are the parameters and factory settings that affect Auto-Tune. If these
setting are acceptable then Auto-Tune can be started just by performing two
steps. If changes are needed, then they must be made before starting Auto-Tune.
1. Enter the Setpoint value in the Display Loop.
2. Initiate Auto-Tune by changing Auto-Tune Start tUNE to YES in the Hidden
Loop.
Auto-Tune Progress
The controller will oscillate the controlling output(s) for four cycles. The
bottom display will flash the cycle phase number. Parameter viewing is
permitted during Auto-Tune. The time to complete the Auto-Tune cycles is
process dependent. The controller should automatically stop Auto-Tune and
store the calculated values when the four cycles are complete. If the controller
remains in Auto-Tune unusually long, there may be a process problem. Auto-
Tune may be stopped by entering NO in Auto-Tune Start tUNE.
AUTO-TUNE OPERATION
(REVERSE ACTING)
FLtr
tc-T16
Curr P16
2 T16
0.2 P16
1
3-LC[HidE]
Auto-Tune Access
tUnE
5-O2[0]
Deadband
db-2
2-OP[0]
Auto-Tune Code
tcod
2-OP
1-IN
1-IN
On/Off Control
Hysteresis
Digital Filtering
Input Type
CHYS
tYpE
MODULE
FACTORY
SETTING
PARAMETERDISPLAY

F
5631-717-767-6511
PID Adjustments
In some applications, it may be necessary to fine tune the Auto-Tune
calculated PID parameters. To do this, a chart recorder or data logging device is
needed to provide a visual means of analyzing the process. Compare the actual
process response to the PID response figures with a step change to the process.
Make changes to the PID parameters in no more than 20% increments from the
starting value and allow the process sufficient time to stabilize before evaluating
the effects of the new parameter settings.
In some unusual cases, the Auto-Tune function may not yield acceptable
control results or induced oscillations may cause system problems. In these
applications, Manual Tuning is an alternative.
PROCESS RESPONSE EXTREMES
MANUAL TUNING
A chart recorder or data logging device is necessary to measure the time
between process cycles. This procedure is an alternative to the controller’s Auto-
Tune function. It will not provide acceptable results if system problems exist.
1. Set the Proportional Band (ProP) to 10.0% for temperature models (T16) and
100.0% for process models (P16).
2. Set both the Integral Time (Intt) and Derivative Time (dErt) to 0 seconds.
3. Set the Output Dampening Time (OPdP) in Output Module 2-OP to 0 seconds.
4. Set the Output Cycle Time [CYCt] in Output Module 2-OP to no higher than
one-tenth of the process time constant (when applicable).
5. Place the controller in Manual USEr Control Mode trnF in the Hidden Loop
and adjust the % Power to drive the process value to the Setpoint value.
Allow the process to stabilize after setting the % Power. Note: trnF must be
set to HidE in Parameter Lockouts Module 3-LC.
6. Place the controller in Automatic (Auto) Control Mode trnF in the Hidden
Loop. If the process will not stabilize and starts to oscillate, set the
Proportional Band two times higher and go back to Step 5.
7. If the process is stable, decrease Proportional Band setting by two times and
change the Setpoint value a small amount to excite the process. Continue
with this step until the process oscillates in a continuous nature.
8. Fix the Proportional Band to three times the setting that caused the oscillation
in Step 7.
9. Set the Integral Time to two times the period of the oscillation.
10. Set the Derivative Time to 1/8 (0.125) of the Integral Time.
11. Set the Output Dampening Time to 1/40 (0.025) the period of the oscillation.

F
564 www.redlion.net
PARAMETER VALUE CHART Programmer:______________________Date:_________
Controller Number:_______ Security Code:_______
DISPLAY PARAMETER FACTORY SETTING USER SETTING
SP SETPOINT VALUE SP1
SP SETPOINT VALUE SP2 T16
P16
20
2.0
OP OUTPUT POWER PERCENT 0.0
ProP *PROPORTIONAL BAND
Intt *INTEGRAL TIME T16
P16
120
40
dErt *DERIVATIVE TIME T16
P16
30
4
AL-1 *ALARM 1 VALUE 0
AL-2 *ALARM 2 VALUE 0
T16
P16
0
0.0
NO
AUTO-TUNE START
tUNE
AutotrnF
0.0
SETPOINT RAMP RATE
SPrP
SP1
SETPOINT SELECT
SPSL
USER SETTINGFACTORY SETTINGPARAMETERDISPLAY
DISPLAY LOOP OUTPUT MODULE (2-OP)
LOCKOUT MODULE (3-LC)
ALARM MODULE (4-AL)
COOLING MODULE (5-O2)
HIDDEN LOOP
INPUT MODULE (1-IN ) T16 ONLY
INPUT MODULE (1-IN ) P16 ONLY
* Factory Setting places these parameters in the Hidden Loop (set to HidE in
Lockout Module 3-LC.
NONE
9999
0
PLOC
0
1
F1 KEY FUNCTION
SETPOINT HIGH LIMIT
SHIFT/OFFSET
USER INPUT FUNCTION
SETPOINT LOW LIMIT
DIGITAL FILTERING
F1In
SPHI
SHFt
InPt
SPLO
FLtr
0
DECIMAL RESOLUTION
dCPt
°F
TEMPERATURE SCALE
SCAL
tc-
INPUT TYPE
tYPE
USER SETTINGFACTORY SETTINGPARAMETERDISPLAY
F1In F1 KEY FUNCTION
InPt USER INPUT FUNCTION
SPHI SETPOINT HIGH LIMIT 999.9
SPLO SETPOINT LOW LIMIT 0.0
InP2
dSP2
InP1
dSP1
INPUT VALUE SCALING 2
DISPLAY VALUE SCALING 2
INPUT VALUE SCALING 1
DISPLAY VALUE SCALING 1
20.00
100.0
4.00
0.0
USER SETTINGDISPLAY PARAMETER FACTORY SETTING
PCt
tYPE
PERCENT ANNUNCIATOR
INPUT TYPE
NO
Curr
rnd ROUNDING INCREMENT 0.1
dCPt DECIMAL RESOLUTION 0.0
FLtr DIGITAL FILTERING 1
CONTROL MODE TRANSFER
CHYS ON/OFF CONTROL HYSTERESIS 2
0.2
tcod AUTO-TUNE CODE
AntP ANALOG OUTPUT RANGE 4-20
OPAC CONTROL ACTION rEv
ANHI ANALOG HIGH SCALING 100.0
ANLO ANALOG LOW SCALING 0.0
ANUt ANALOG UPDATE TIME 0
ANAS ANALOG OUTPUT ASSIGNMENT OP
OPdP OUTPUT POWER DAMPENING T16
P16
3
1
USER SETTINGDISPLAY PARAMETER FACTORY
SETTING
CYCt CYCLE TIME 2.0
OPHI OUTPUT POWER UPPER LIMIT 100
OPLO 0
OPFL SENSOR FAIL POWER PRESET 0
OUTPUT POWER LOWER LIMIT
AL ALARM VALUE ACCESS HIdE
CodE ACCESS CODE 0
SPSL SETPOINT SELECT ACCESS LOC
ALrS RESET ALARMS ACCESS LOC
tUNE AUTO-TUNE ACCESS HIdE
trnF TRANSFER CONTROL ACCESS LOC
SPrP SETPOINT RAMP ACCESS HIdE
PId PID VALUE ACCESS HIdE
USER SETTINGDISPLAY PARAMETER FACTORY
SETTING
SP SETPOINT ACCESS dISP
OP OUTPUT POWER ACCESS dISP
Stb1 ALARM 1 STANDBY NO
AL-1 ALARM 1 VALUE 0
ACt2 ALARM 2 ACTION AuHI
AHYS
AL-2
ALARM 1 & 2 HYSTERESIS
ALARM 2 VALUE
T16
P16
0
Stb2 ALARM 2 STANDBY
rSt2 ALARM 2 RESET MODE Auto
Lit2 ALARM 2 ANNUNCIATOR nor
rSt1 ALARM 1 RESET MODE Auto
USER SETTINGDISPLAY PARAMETER FACTORY
SETTING
ACt1 ALARM 1 ACTION AuHI
Lit1 ALARM 1 ANNUNCIATOR nor
0
DEADBAND
db-2
1.0
RELATIVE GAIN
GAN2
2.0
CYCLE TIME
CYC2
USER SETTING
FACTORY
SETTING
PARAMETERDISPLAY
4.0
100.0
T16
P16
1
0.1
T16
P16

F
5651-717-767-6511
T16 & P16 PROGRAMMING QUICK OVERVIEW
Input
Type
Percent
Symbol
Temp
Scale
Decimal
Resolution
Rounding
Increment
Digital
Filtering
Display
Value 1
Input
Value 1
Cycle
Time
Control
Action
Output Power
Low Limit
Output Power
High Limit
Sensor Fail
Power Preset
Output Power
Dampening
On/Off Control
Hysteresis
Auto-Tune
Code
Input
Value 2
Shift/Offset Setpoint
Low Limit
Setpoint
High Limit
User Input
Function
F1 Key
Function
Analog
Output Range
Analog Output
Assignment
Analog Output
Update Time
Analog Low
Scaling
Analog High
Scaling
Display
Value 2
Setpoint
Access
Output
Power
Access
PID
Values
Access
Alarm
Values
Access
Access
Code
Setpoint
Select
Access
Setpoint
Ramp Rate
Access
Auto/Manual
Transfer
Access
Alarm 1
Action
Alarm 1
Annunciator
Alarm 1
Reset Mode
Alarm 1
Standby
Alarm 1
Value
Alarm 2
Action
Alarm 2
Annunciator
Auto-Tune
Off/On Access
Reset Alarms
Access
Alarm 2
Reset Mode
Alarm 2
Standby
Alarm 2
Value
Alarm 1 & 2
Hysteresis
Cooling
Cycle Time
Cooling
Relative Gain
Heat/Cool
Deadband/Overlap
Factory
Service Code
ª
«
HIDDEN
LOOP DISPLAY
LOOP
- P16 only
- T16 only
Ends and returns to
start of Display Loop.
Enters displayed module,
then advances to the next
parameter.
Advances to the next
module, then changes
parameter selection/value.
Parameter availability is model and program dependent.

F
566 www.redlion.net
PID CONTROL WITH REDUCED OVERSHOOT
ON DEMAND AUTO-TUNING OF PID CONTROL SETTINGS
NEMA 4X/IP65 BEZEL
DUAL LED DISPLAYS FOR SIMULTANEOUS INDICATION OF
TEMPERATURE AND SETPOINT
STATUS INDICATORS FOR OUTPUTS AND CONTROL MODES
ACCEPTS 10 TYPES OF SENSOR INPUTS (Thermocouple or RTD)
OPTIONAL HEATER CURRENT MONITOR AND HEATER BREAK
ALARM
OPTIONAL DUAL ALARM OUTPUTS
OPTIONAL TWO LINEAR DC OUTPUTS (0 to 10 V, 0/4 to 20 mA)
MANUAL/AUTOMATIC CONTROL MODES
SETPOINT RAMPING FOR PROCESS STARTUP
PROGRAMMABLE USER INPUT (Digital) FOR ADDED FLEXIBILITY
SENSOR ERROR COMPENSATION (Offset) AND BREAK
DETECTION
HEATING AND OPTIONAL COOLING OUTPUTS
PARAMETER SECURITY VIA PROGRAMMABLE LOCKOUTS
FIELD REPLACEABLE OUTPUT BOARD
(Relay or Logic/SSR Drive)
OPTIONAL TRIAC OUTPUT
SECOND SETPOINT SETTING
OPTIONAL REMOTE SETPOINT INPUT (0/4 to 20 mA)
OPTIONAL RS485 SERIAL COMMUNICATIONS
PC SOFTWARE AVAILABLE FOR CONTROLLER CONFIGURATION
DESCRIPTION
The T48 Controller accepts signals from a variety of temperature sensors
(thermocouple or RTD elements), precisely displays the process temperature,
and provides an accurate output control signal (time proportional or linear DC)
to maintain the process at the desired temperature. The controller’s
comprehensive yet simple programming allows it to meet a wide variety of
application requirements.
The controller operates in the PID control mode for both heating and cooling,
with on-demand auto-tune, which will establish the tuning constants. The PID
tuning constants may be fine-tuned by the operator at any time and then locked
out from further modification. The controller employs a unique overshoot
suppression feature, which allows the quickest response without excessive
overshoot. The unit can be transferred to operate in the manual mode, providing
the operator with direct control of the output. The controller may also be
programmed to operate in the ON/OFF control mode with adjustable hysteresis.
A second setpoint is available on select models to allow quick selection of a
different setpoint setting.
Dual 4-digit displays allow viewing of the process temperature and setpoint
simultaneously. Front panel indicators inform the operator of the controller and
output status. On many models the main control output and the alarm outputs
are field replaceable.
Optional alarm(s) can be configured to activate according to a variety of actions
(Absolute HI or LO, Deviation HI or LO, Band IN or OUT, and Heater Current
Break) with adjustable hysteresis. A standby feature suppresses the alarm during
power-up until the temperature stabilizes outside the alarm region. The second
alarm can be configured as a secondary PID output (heat/cool applications).
Optional Main Linear DC output (10 V or 20 mA) can be used for control or
temperature re-transmission purposes. Programmable output update time
reduces valve or actuator activity. The output range can be scaled independent
of the input range.
Optional Second Linear DC output (10 V or 20 mA) provides an independent
temperature re-transmission, while the main Linear DC output is being used for
control. The output range can be scaled independent of the input range.
Optional Heater Current Monitor provides a direct readout of process heater
current. An alarm can be programmed to signal when the heater has failed. This
provides early warning of system failure before product quality is affected.
Optional Remote Setpoint input (0/4 to 20 mA) allows for cascade control
loops, where tighter control is required; and allows for remotely driven setpoint
MODEL T48 - 1/16 DIN TEMPERATURE CONTROLLER
DIMENSIONS In inches (mm)
PANEL CUT-OUT
CAUTION: Risk of Danger.
Read complete instructions prior to
installation and operation of the unit.
CAUTION: Risk of electric shock.
UL Recognized Component,
File # E156876

F
5671-717-767-6511
signal from computers or other similar equipment. Straightforward end point
scaling with independent filtering and local/remote transfer option expand the
controller’s flexibility.
The optional RS485 serial communication interface provides two-way
communication between a T48 and other compatible equipment such as a
printer, PLC, HMI, or a host computer. In multipoint applications (up to
thirty-two), the address number of each T48 on the line can be programmed
from 0 to 99. Data from the T48 can be interrogated or changed, and alarm
output(s) may be reset by sending the proper command code via serial
communications. PC software, SFCRM, allows for easy configuration of
controller parameters. These settings can be saved to disk for later use or used
for multi-controller down loading. On-line help is provided within the software.
The unit is constructed of a lightweight, high impact plastic case with a tinted
front panel. The front panel meets NEMA 4X/IP65 specifications when properly
installed. Multiple units can be stacked horizontally or vertically. Modern
surface-mount technology, extensive testing, plus high immunity to noise
interference makes the controller extremely reliable in industrial environments.
SAFETY SUMMARY
All safety related regulations, local codes and instructions that appear in the
manual or on equipment must be observed to ensure personal safety and to
prevent damage to either the instrument or equipment connected to it. If
equipment is used in a manner not specified by the manufacturer, the protection
provided by the equipment may be impaired.
Do not use the T48 to directly command motors, valves, or other actuators not
equipped with safeguards. To do so can be potentially harmful to persons or
equipment in the event of a fault to the controller. An independent and redundant
temperature limit indicator with alarm outputs is strongly recommended.
SPECIFICATIONS
1. DISPLAY: Dual 4-digit
Upper Temperature Display: 0.4" (10.2 mm) high red LED
Lower Auxiliary Display: 0.3" (7.6 mm) high green LED
Display Messages:
“OLOL” - Appears when measurement exceeds + sensor range.
“ULUL” - Appears when measurement exceeds - sensor range.
“OPEN” - Appears when open sensor is detected.
“SHrt” - Appears when shorted sensor is detected (RTD only)
“...” - Appears when display values exceed + display range.
“-..” - Appears when display values exceed - display range.
LED Status Annunciators:
%P - Lower auxiliary display shows power output in (%).
MN - Flashing: Controller is in manual mode.
On: Local Setpoint (Remote Setpoint option)
Off: Remote Setpoint
DV - Lower auxiliary display shows deviation (error) from
temperature setpoint or shows heater current.
O1 - Main control output is active.
A1 - Alarm #1 is active (for A1 option.).
A2 - Alarm #2 is active OR
- Cooling output (O2) is active
2. POWER:
AC Versions: 85 VAC min. to 250 VAC max., 50 to 60 Hz, 8 VA max.
DC Versions:
DC Power: 18 to 36 VDC; 7 W
AC Power: 24 VAC ± 10%; 50 to 60 Hz, 9 VA
3. CONTROLS: Four front panel push buttons for modification and setup of
controller functions and one external input user for parameter lockout or
other functions.
4. MEMORY: Nonvolatile E2 PROM retains all programmable parameters and
values.
5. MAIN SENSOR INPUT:
Sample Period: 100 msec
Response Time: Less than 300 msec typ., 400 msec max. (to within 99% of
final value w/step input; typically, response is limited to response time of
probe)
Failed Sensor Response:
Main Control Output(s): Programmable preset output
Display: “OPEN”
Alarms: Upscale drive
Normal Mode Rejection: 40 dB @ 50/60 Hz (improves with increased
digital filtering.)
Common Mode Rejection: Greater than 120 dB, DC to 60 Hz
Protection: Input overload 120 VAC max. for 15 seconds max.
6. THERMOCOUPLE INPUT:
Types: T, E, J, K, R, S, B, N, Linear mV, software selectable
Input Impedance: 20 MΩ all types
Lead resistance effect: 0.25 μV/Ω
Cold junction compensation: Less than ±1°C (±1.5°C max), error over 0
to 50°C max. ambient temperature range. Defeated for Linear mV
indication mode.
Resolution: 1° for all types, or 0.1° for T, E, J, K, and N only.
7. RTD INPUT: 2 or 3 wire, 100 Ωplatinum, alpha = 0.00385 (DIN 43760),
alpha = 0.0039162
Excitation: 150 μA typical
Resolution: 1 or 0.1 degree
Lead Resistance: 15 Ωmax. per input lead
8. INDICATION ACCURACY: ±(0.3% of Span +1°C.) includes NIST
conformity, cold junction effect and A/D conversion errors at 23°C after 20
min. warm-up.
9. USER INPUT: Internally pulled up to +5 VDC (1 MΩ).
VIN MAX = 5.25 VDC, VIL = 0.85 V max., VIH = 3.65 V min.,
IOFF = 1μA max.
Response Time: 120 msec max.
Functions:
10. CONTROL AND ALARM OUTPUTS: (Heating, Cooling or Alarm)
Relay outputs with Form A contacts:
Contact Rating: 3 A @ 250 VAC or 30 VDC (resistive load)
1/10 HP @ 120 VAC (inductive load)
Life Expectancy: 100,000 cycles at max. load rating.
(Decreasing load and/or increasing cycle time, increases life
expectancy.)
Logic/SSR Drive Outputs:
Rating: 45 mA @ 4 V min., 7 V nominal
Triac Outputs:
Type: Isolated, Zero Crossing Detection
Rating:
Voltage: 120/240 VAC
Max. Load Current: 1 Amp @ 35°C
0.75 Amp @ 50°C
Min Load Current: 10 mA
Offstate Leakage Current: 7 mA max. @ 60 Hz
Operating Frequency: 20 to 400 Hz
Protection: Internal transient snubber
11. MAIN CONTROL:
Control: PID or ON/OFF
Output: Time proportioning or Linear DC
Cycle time: Programmable
Auto-tune: When selected, sets proportional band, integral time, and
derivative time values.
Probe Break Action: Programmable
12. ALARMS: 1 or 2 alarms (optional)
Modes: Absolute high acting
Absolute low acting
Deviation high acting
Deviation low acting
RTD TYPE RANGE
385 -200 to +600°C
-328 to +1100°F
392 -200 to +600°C
-328 to +1100°F
OHMS 1.0 to 320.0
Program Lock Integral Action Lock
Auto/Manual Mode Select Setpoint Ramp Enable
Reset Alarms Setpoint 1/Setpoint 2 Select
Local/Remote Setpoint Select Serial block print
TC TYPE RANGE
mV
WIRE COLOR
ANSI BS 1843
T-200 to +400°C
-328 to +752°F
blue (+)
red (-)
white (+)
blue (-)
E-200 to +750°C
-328 to +1382°F
violet (+)
red (-)
brown (+)
blue (-)
J-200 to +760°C
-328 to 1400°F
white (+)
red (-)
yellow (+)
blue (-)
K-200 to +1250°C
-328 to +2282°F
yellow (+)
red (-)
brown (+)
blue (-)
R0 to 1768°C
+32 to +3214°F
black (+)
red (-)
white (+)
blue (-)
S0 to 1768°C
+32 to 3214°F
black (+)
red (-)
white (+)
blue (-)
B+149 to +1820°C
+300 to +3308°F
grey (+)
red (-) no standard
N-200 to +1300°C
-328 to +2372°F
orange (+)
red (-)
orange (+)
blue (-)
-5.00 to +56.00 no standard no standard

F
568 www.redlion.net
Inside band acting
Outside band acting
Heater break alarm
Reset Action: Programmable; automatic or latched
Standby Mode: Programmable; enable or disable
Hysteresis: Programmable
Probe Break Action: Upscale
Annunciator: LED backlight for “A1”, “A2”
13. COOLING: Software selectable (overrides alarm 2)
Control: PID or ON/OFF
Output: Time Proportioning
Cycle time: Programmable
Proportional Gain Adjust: Programmable
Heat/Cool Deadband Overlap: Programmable
14. MAIN AND SECOND LINEAR DC OUTPUT: (optional)
Main: Control or Re-transmission, programmable update rate from 0.1 sec to
250 sec
Second: Re-transmission only, fixed update rate of 0.1 sec
* Accuracies are expressed as ±percentages after 20 minutes warm-up. Output
accuracy is specified in two ways: Accuracy over an 18 to 28°C range at 10
to 75% RH environment; and accuracy over a 0 to 50°C range at 0 to 85%
RH (non-condensing) environment. Accuracy over the wide temperature
range reflects the temperature coeffecient of the internal circuitry.
** Outputs are independently jumper selectable for either 10 V or 20 mA. The
output range may be field calibrated to yield approximately 10% overrange
and a small underrange (negative) signal.
15. REMOTE SETPOINT INPUT: (optional)
Input type:
0/4 to 20 mA
Input Resistance: 10 Ω
Overrange: -5% to 105%
Overload: 100 mA (continuous)
Scale Range: -999 to 9999 degrees or -99.9 to 999.9 degrees.
Resolution: 1 part in 10,000.
Accuracy:
At 25°°C: ±(0.1 % of full scale +½LSD)
Over 0 to 50°°C range: ±(0.2% of full scale +½LSD)
Reading Rate: 10/sec.
Setpoint Filtering: Programmable Digital
Setpoint Ramping: Programmable, 0.1 to 999.9 degrees/minute.
16. HEATER CURRENT MONITOR INPUT: (optional)
Type: Single phase, full wave monitoring of load currents controlled by main
output (01).
Input: 100 mA AC output from current transformer (RLC #CT004001) or
any CT with 100 mA AC output.
Display Scale Range: 1.0 to 999.9 Amps or 0.0 to 100.0%
Input Resistance: 5 Ω
Accuracy:
At 25°°C: ±(0.5 % of full scale +½LSD), (5 to 100% of Range)
Over 0 to 50°°C range: ±(1.0% of full scale +½LSD), (5 to 100% of Range)
Frequency: 50 to 400 Hz.
Alarm Mode: Dual acting; heater element fail detect and control device fail
detect.
Overrange: 105% Capacity
Overload: 200 mA (continuous).
17. SERIAL COMMUNICATIONS: (optional)
Type: RS485 multipoint, balanced interface
Baud Rate: 300 to 9600
Data Format: 7O1, 7E1, 7N2, 8N1
Node Address: 0-99, max of 32 units per line
Transmit Delay: 2-100 msec or 100-200 msec
Data Encoding: ASCII
Isolation w.r.t Main Input Common: 500 Vrms for 1 min. (50 V working)
Not isolated w.r.t. Remote Setpoint or Heater Current inputs, or Analog
Output common
Note: RS485 and the Analog Output commons are not internally isolated
within the controller. The terminating equipment of these outputs must not
share the same common (ie. earth ground).
18. ENVIRONMENTAL CONDITIONS:
Operating Range: 0 to 50°C
Storage Range: -40 to 80°C
Span Drift (max.): 130 ppm/°C, main input
Zero Drift (max.): 1μV/°C, main input
Operating and Storage Humidity:
85% max. relative humidity (non-condensing) from 0°C to 50°C.
Vibration According to IEC 68-2-6: Operational 5 to 150 Hz, in X, Y, Z
direction for 1.5 hours, 2g’s.
Shock According to IEC 68-2-27: Operational 20 g, 11 msec in 3 directions.
Altitude: Up to 2000 meters
19. ISOLATION BREAKDOWN RATINGS:
AC line with respect to all Inputs and outputs: 250 V working (2300 V for
1 minute).
Main input with respect to Analog Outputs, Remote Setpoint Input,
Heater Current Input: 50 V working (2300 V for 1 minute).
All other inputs and outputs with respect to relay contacts: 2000 VAC
Not isolated between Analog Outputs, Remote Setpoint and Heater Current
commons.
20. CERTIFICATIONS AND COMPLIANCES:
SAFETY
UL Recognized Component, File #E156876, UL873, CSA 22.2 No. 24
Recognized to U.S. and Canadian requirements under the Component
Recognition Program of Underwriters Laboratories, Inc.
Type 4X Enclosure rating (Face only), UL50
IECEE CB Scheme Test Certificate # UL1369-156876/USA,
CB Scheme Test Report # 96ME50224-040396
Issued by Underwriters Laboratories, Inc.
IEC 61010-1, EN 61010-1: Safety requirements for electrical equipment
for measurement, control, and laboratory use, Part 1.
IP65 Enclosure rating (Face only), IEC 529
ELECTROMAGNETIC COMPATIBILITY
Notes:
1. No loss of performance during EMI disturbance at 10 V/m.
Unit is panel mounted in a metal enclosure (Buckeye SM7013-0 or
equivalent) that provides at least 20 dB shielding effectiveness. Metal
panel is connected to earth ground.
Power Line and I/O cables routed in metal conduit connected to earth
ground.
2. Self-recoverable loss of performance during EMI disturbance at 10 Vrms:
Analog output may deviate during EMI disturbance.
For operation without loss of performance:
Install power line filter, RLC#LFIL0000 or equivalent.
OR
Install 2 ferrite cores, RLC#FCOR0000 or equivalent, to AC lines at
unit for frequencies above 5 MHz.
I/O cables routed in metal conduit connected to earth ground.
Refer to the EMC Installation Guidelines section of the manual for additional
information.
21. CONNECTION: Wire clamping screw terminals
22. CONSTRUCTION: Black plastic alloy case and collar style panel latch. Panel
latch can be installed for vertical or horizontal instrument stacking. One piece
tinted plastic bezel. Bezel assembly with circuit boards can be removed from the
case to change the output board without removing the case from the panel or
disconnecting wiring. Unit meets NEMA 4X/IP65 requirements for indoor use,
when properly installed. Installation Category II, Pollution Degree 2.
23. WEIGHT: 0.38 lbs (0.17 kgs)
OUTPUT **
RANGE
ACCURACY *
(18 to 28°C)
ACCURACY *
(0 to 50°C) COMPLIANCE RESOLUTION
0 to 10 V 0.10% of FS
+ 1/2 LSD
0.30% of FS
+ 1/2 LSD 10k ohm min. 1/3500
0 to 20 mA 0.10% of FS
+ 1/2 LSD
0.30% of FS
+ 1/2 LSD 500 ohm max. 1/3500
4 to 20 mA 0.10% of FS
+ 1/2 LSD
0.30% of FS
+ 1/2 LSD 500 ohm max. 1/2800
Power mains class A
Enclosure class AEN 55011RF interference
Emissions to EN 50081-2
Level 3; 10 V/mENV 50204
150 KHz - 80 MHz
Level 4; 30 A/m
Level 3; 10 V/rms 2
EN 61000-4-8
EN 61000-4-6
Power frequency magnetic fields
RF conducted interference
Level 3; 2 Kv power
Level 4; 2 Kv I/OEN 61000-4-4Fast transients (burst)
80 MHz - 1 GHz
Level 3; 10 V/m 1
EN 61000-4-3Electromagnetic RF fields
Level 3; 8 Kv air
Level 2; 4 Kv contact EN 61000-4-2Electrostatic discharge
200 Hz, 50% duty cycle
Immunity to EN 50082-2
900 MHz ± 5 MHz
Simulation of cordless telephones

F
5691-717-767-6511
BASIC OPERATION
The T48 controls a process temperature by measuring the temperature via an
input probe, then calculating a control output power value by use of a modified
PID control algorithm. The unit controls the system with the new output power
value to keep the process temperature at setpoint. The PID control algorithm
incorporates features which provide for high control accuracy and low
temperature overshoot from process disturbances.
FRONT PANEL FEATURES
In the normal operating mode, the unit displays the process temperature
in the upper display. One of the following parameters can be viewed in the
lower display:
- Setpoint
- % Power Output
- Temperature Deviation
- Heater Current
- Temperature symbol (F or C)
- Blank Display
The user scrolls through these parameters by pressing the D button. If
enabled, the control setpoint or power output (manual mode only) can be
directly modified in this mode.
In the normal operating mode, parameters are selected by use of the P button
and modified by use of the UP and DOWN buttons. Parameters are then entered
by the P button, which advances the user to the next parameter. Pressing the D
button immediately returns the controller to the normal operating mode without
changing the currently selected parameter.
HARDWARE FEATURES
A fast 100 msec input sampling rate provides quick controller response to a
process disturbance, thus providing excellent temperature control.
Measurement accuracy of 0.3% of span ±1°C or better, provides close process
control conforming to the desired control setpoint value. The T48 accepts a
variety of both thermocouple and RTD temperature probes. An output board
contains the Main Control output, Alarm 1 output, Alarm 2/Cooling output,
and/or Linear DC output. Since the controller is serviceable from the front of
the panel, the output board (on some models) may be easily changed or replaced
without disturbing the wiring behind the panel. No re-programming is required
when changing or replacing the output board for units without the Linear DC
output option. Units with the linear output option require calibration procedure
for the new linear output.
Low-drift, highly stable circuitry ensures years of reliable and accurate
temperature control. The recommended two year re-calibration interval is easily
accomplished via the programming menu.
REMOTE SETPOINT INPUT
The remote setpoint input facilitates the use of a remote signal to drive the
controller’s setpoint. The remote signal can be scaled independent to that of the
controller’s range. The controller’s response to local/remote setpoint transfers
can be programmed. Also, the remote signal is filtered by use of an adaptive
filter. With this filter, relatively large filtering time constants can be used
without suffering from long settling times. The time constant and filter disable
band are programmable. Additionally, the remote signal can also be velocity
limited (or ramped) to slow the controller’s response to changes in setpoint.
This results in a steady control response with no overshoot.
HEATER CURRENT MONITOR
The T48 provides a direct readout of process heater current. This provides
valuable information regarding single phase heater system integrity. It is
especially useful on extruder and large oven applications where adjacent
controllers mask the effect of a failed heater. The heater break alarm senses two
types of heater system faults:
1) Main control output is “on” and heater current is below alarm value. This
indicates failed heater or failed parts of heater, breaker trip, failed power
control device, etc.
2) Main control output is “off” and heater current is above 10% of alarm value.
This indicates a failed power control device, wiring fault, etc.
LINEAR DC ANALOG OUTPUTS
The Main Linear DC output has independent scaling, programmable output
update time and filter (damping) time. These parameters permit flexibility in
process configuration. The output can be set for 0 to 10 V, 0 to 20 mA or 4 to
20 mA ranges, and can be configured for control or for transmission of
temperature or setpoint values.
A Second Linear DC output is dedicated for retransmission of input
temperature. The output can be scaled and converted independent of the input
and Main Linear DC output. This output is isolated from the input.
SETPOINT FEATURES
The controller setpoint can be protected from out of range values by
programming the setpoint range limit values. Additionally, safeguards from
inadvertent data entry can be programmed.
A second setpoint value can be programmed which can be made active by a
user input and/or through the front panel on selected models.
The setpoint ramp feature ramps the setpoint value at start-up or any time a
setpoint change is made, at a user programmable rate. This feature reduces
thermal shock to the process and helps to minimize temperature overshoot.
INPUT FEATURES
A programmable input filter can be used to stabilize readings from a process
with varying or oscillating temperature characteristics, helping to provide better
temperature control. A programmable temperature shift function can be used to
compensate for probe errors or to have multiple T48 units indicate the same
nominal temperature.
The programmable User Input can be used to control a variety of functions,
such as auto/manual transfer of the controller, reset alarm output(s), transfer to
second setpoint, etc.
OUTPUT FEATURES
Programmable output power limits provide protection for processes where
excessive power can cause damage. Automatic sensor probe break detection,
for fail-safe operation, causes the controller to default to a programmed output
power (upscale or downscale burnout). Programmable output cycle time,
output hysteresis and dampening can reduce output activity without degrading
control accuracy. The main outputs can operate in PID, ON/OFF, or manual
control modes.
CONTROL AND ALARM OUTPUTS
In addition to the Linear DC outputs, there are up to three types of ON/OFF
outputs.These outputs can be relay, logic, or triac for control or alarm purposes.
Relay outputs can switch user applied AC or DC voltages. Logic/SSR drive
outputs supply power to external SSR power units. One Logic/SSR Drive
output can control up to four SSR power units at one time. The Triac output
supplies one Amp of AC current for control of an external AC relay or triac
device.
AUTO-TUNE
The T48 has an auto-tune feature which, on demand, automatically
determines the PID control parameters for a particular thermal process. After
completion of auto-tune, the PID parameters are automatically optimized for
that process and loaded into non-volatile memory. The operator may view and
modify the parameters as desired.
Auto-tune may be invoked either at start-up or at setpoint, depending on the
process requirements. An auto-tune programmable dampening factor produces
various levels of process control and response characteristics.
RS485 Communications
The RS485 communications option allows the connection of up to 32 devices
on a single pair of wires with a distance of up to 4,000 feet and a maximum
baud rate of 9600. Since the same pair of wires are used for both transmit and
receive, only one way communication is possible at any given time. The
controller has a programmable response time to allow the host device adequate
time to release the communication line for a transmission.
Selected parameters from the T48 can be interrogated or changed, and alarm
output(s) may be reset by sending the proper command code via serial
communications. It is also possible to invoke Auto-tune through the serial port.
Serial communications used with SFCRM software allows for easy controller
parameter configuration by computer.
HEATING AND COOLING SYSTEMS
The T48 is available with dual outputs to provide heating and cooling to
those processes that require them. For example, many extruder applications
require both heating and cooling to maintain accurate extruder barrel and die
temperatures. The T48 is easily configured for these types of applications.

F
570 www.redlion.net
CONTROLLER PROGRAMMING
Front Panel Program Disable allows all of the controller’s set-ups to be
locked-out from further operator intervention after the initial set-up.
The following four programming modes allow the controller to adapt to any
required user-interface level:
Unprotected Parameter Mode
Protected Parameter Mode
Hidden Function Mode
Configuration Parameter Mode
UNPROTECTED PARAMETERS MODE *
The Unprotected Parameters Mode is accessible from the Normal Display
Mode when program disable is inactive or when the proper access code number
from the Protected Parameter Mode is entered. The Configuration Parameter
Modes can be accessed only from this mode.
“SP” - Enter setpoint
“OP” - Enter output power
“ProP” - Enter proportional band
“Intt” - Enter integral time
“dErt” - Enter derivative time
“AL-1” - Enter value for alarm #1
“AL-2” - Enter value for alarm #2
“CNFP” - Select configuration access point
“End” - Return to normal display mode
PROTECTED PARAMETERS MODE *
The Protected Parameters Mode is enabled when program disable is active.
This mode prevents access to the Configuration Parameter Modes without the
proper access code number. Only the parameters that are enabled in the
Configuration 3 parameter (lock-out section) can be accessed.
“ProP” - Enter proportional band
“Intt” - Enter integral time
“dErt” - Enter derivative time
“AL-1” - Enter value for alarm #1
“AL-2” - Enter value for alarm #2
“CodE” - Enter value to access unprotected parameters and
configuration parameters
HIDDEN FUNCTION MODE *
The Hidden Function Mode is accessible from the Normal Display Mode.
The functions in this mode may be locked-out individually in Configuration 3
parameter (lock-out section).
“SPSL” - Select local (SP1 or SP2) or remote setpoint
“trnF” - Transfer between automatic (PID) control and manual control
“tUNE” - Invoke/cancel PID Auto-tune
“ALrS” - Reset latched alarms
CONFIGURATION PARAMETER MODE
The Configuration Parameter Mode allows the operator to set-up the basic
requirements of the controller. It is divided into sections which group together
related programming steps, such as inputs, outputs, alarms, etc. Upon
completion of each section, the program returns to the Configuration Access
Point, allowing the user to return to the Normal Display Mode.
Configuration 1, Inputs (1-IN)
“tYPE” - Select input probe type
“SCAL” - Select temperature scale
“dCPt” - Select temperature resolution
“FLtr” - Select level of input filtering
“SHFt” - Enter input correction shift (offset)
“SPLO” - Enter setpoint lower limit
“SPHI” - Enter setpoint higher limit
“SPrP” - Enter setpoint ramp rate
“InPt” - Select user input function
Configuration 2, Outputs (2-OP) *
“CYCt” - Enter time proportioning cycle time
“OPAC” - Select output control action
“OPLO” - Enter output power low limit
“OPHI” - Enter output power high limit
“OPFL” - Enter probe fail power preset
“OPdP” - Enter output control dampening
“CHYS” - Enter ON/OFF control hysteresis
“tcOd” - Select auto-tuning dampening
“ANtP” - Main Linear DC analog output range
“ANAS” - Main Linear DC analog output source
“ANut” - Main Linear DC analog output update time
“ANLO” - Main Linear DC analog output scaling low
“ANHI” - Main Linear DC analog output scaling high
Configuration 3, Parameter Lock-Outs (3-LC) *
“SP” - Select setpoint access level
“OP” - Select power access level
“dEv” - Enable deviation display
“Hcur” - Enable heater current display
“UdSP” - Enable temperature scale display
“CodE” - Enter parameter access code
“PId” - Select PID access level
“AL” - Select alarm access level
“ALrS” - Enable alarm reset access
“SPSL” - Enable local/remote selection
“trnF” - Enable auto/manual mode selection
“tUNE” - Enable auto-tune invocation
Configuration 4, Alarms (4-AL) *
“ACt1” - Select operation mode of alarm #1, or select heat output
“rSt1” - Select reset mode of alarm #1
“Stb1” - Enable activation delay of alarm #1
“AL-1” - Enter value for alarm #1
“ACt2” - Select operation mode of alarm #2, or select cooling output
“rSt2” - Select reset mode of alarm #2
“Stb2” - Enable activation delay of alarm #2
“AL-2” - Enter value for alarm #2
“AHYS” - Enter hysteresis value for both alarms
Configuration 5, Cooling (5-O2) *
“CYC2” - Enter cooling time proportioning cycle time
“GAN2” - Enter cooling relative gain
“db-2” - Enter heat/cool deadband or overlap
Configuration 6, Serial Communications (6-SC) *
“bAUd” - Select baud rate
“ConF” - Select character frame format
“Addr” - Enter address
“Abrv” - Select abbreviated or full transmission
“PoPt” - Select print options
Configuration 7, Remote Setpoint Input (7-N2) *
“dSP1” - Enter remote setpoint display scaling value #1
“INP1” - Enter remote setpoint process scaling value #1
“dSP2” - Enter remote setpoint display scaling value #2
“INP2” - Enter remote setpoint process scaling value #2
“FLtr” - Enter remote setpoint filter time constant
“bAnd” - Enter remote setpoint filter disable band
“trnF” - Select Local/Remote setpoint transfer response
Configuration 7 - Heater Current Parameters (7-N2) *
“Hcur” - Enter full scale rating of CT
Configuration 8, Second Linear DC Analog Output (8-A2) *
“A2tP” - Second linear DC analog range
“A2LO” - Second linear DC analog scaling low
“A2HI” - Second linear DC analog scaling high
Configuration 9, Factory Service Operations (9-FS)
“Code 48” - Calibrate Instrument
“Code 66” - Reset parameters to factory setting
*These parameters may not appear due to option configuration or other
programming.

F
5711-717-767-6511
MULTIPLE UNIT STACKING
The T48 is designed for close spacing of multiple units. Units can be
stacked either horizontally or vertically. For vertical stacking, install the panel
latch with the screws to the sides of the unit. For horizontal stacking, the panel
latch screws should be at the top and bottom of the unit. The minimum spacing
from center line to center line of units is 1.96" (49.8 mm). This spacing is the
same for vertical or horizontal stacking.
Note: When stacking units, provide adequate panel ventilation to ensure that
the maximum operating temperature range is not exceeded.
PANEL CUT-OUT SPACING FOR MULTIPLE UNIT STACKING.
HORIZONTAL ARRANGEMENT SHOWN.
ACCESSORY - CURRENT TRANSFORMER-40 A
The external Current Transformer is used when specifying the T48s
equipped with the Heater Current Monitor.
Current Transformers:
Part Number: CT004001
Current Ratio: 40 : 0.1 (Amperes)
Max Heater Current: 50 A
Dielectric Strength: 1000 VAC (For 1 minute)
Vibration Resistance: 50 Hz (Approx 10 G)
Terminals: Solder Type
Window Diameter: 0.228" (5.8 mm)
Weight: 0.406 oz (11.5 g)
ACCESSORY - CURRENT TRANSFORMER-50 A
The external Current Transformer is used when specifying the T48s
equipped with the Heater Current Monitor.
Part Number: CT005001
Current Ratio: 50 : 0.1 (Amperes)
Operation Frequency: 50 to 400 Hz
Insulation Class: 0.6 KV BIL, 10 KV full wave.
Terminals: Brass studs No. 8-32 UNC with flat washer and hex nuts.
Window Diameter: 1.13" (28.7 mm)
Weight: 8 oz (226.0 g)
PANEL LATCH INSTALLED FOR
VERTICAL UNIT STACKING
PANEL LATCH INSTALLED FOR
HORIZONTAL UNIT STACKING
ACCESSORY - EXTERNAL SSR POWER UNIT
The external SSR Power Unit is used with T48s equipped with Logic/SSR
Drive outputs to switch loads up to 240 VAC @ 45 Amps, 25°C ambient. The
unit is operated by applying a low level DC control signal to the isolated
input. The unit features zero cross detection circuits which reduces radiated
RFI when switching load currents. With no contacts to wear out, the SSR
Power Unit provides virtually limitless operational life. The unit is supplied
with an integral heat sink for immediate installation.
External SSR Power Unit:
Part Number: RLY50000
Switched Voltage Range: 50 to 280 VAC
Load Current: 45 Amps max. @ 25°C ambient temperature
35 Amps max. @ 50°C ambient temperature
On State Input: 3 to 32 VDC @ 1500 Ωimpedance. (isolated)
(Use Logic/SSR drive output.)
Off State Input: 0.0 to 1.0 VDC
Size: 5.5" (14 cm) L x 4.75" (12 cm) W x 2.62" (6.6 cm) H

F
572 www.redlion.net
MULTIPLE UNIT/REMOTE SETPOINT APPLICATION
Eight T48 controllers are used in a drying oven. Each T48 controls a zone
within the oven. Depending upon the material to be dried, and its initial
moisture content, the drying setpoint temperature varies. A master T48
controller transmits setpoint via linear DC output. This signal is received as
a remote setpoint signal by the other slave controllers.
Whenever the master controller’s setpoint is changed, the slave controller’s
setpoint changes automatically.
The remote setpoint input at each slave controller can be scaled
independently.
OEM PAINT SPRAYER APPLICATION
An OEM manufacturing spray painting equipment utilizes
the T48 to maintain optimum paint temperature. In addition to
the low cost, the 1/16 DIN package size permits the OEM to
design temperature control into various sized painting
equipment, from small hand sprayers to large paint booths. The
heating element used to heat the paint, is connected to the Main
Control Output (OP1) programmed for On/Off control. Alarm 1
is programmed as Band Inside Acting, so that as long as the
paint temperature is within manufacturer’s specifications for
temperature, the “GO” light is on. Alarm 2 is programmed as
Band Outside acting so that the “NO GO” light is lit when the
paint temperature is more than 12° outside the manufacturer’s
specifications of 140 to 150°F.
PLASTICS EXTRUDER APPLICATION
Several T48 controllers are employed to control the
temperature of a plastics extruder. Each T48 controls a
heating element and a cooling water solenoid to maintain
each extruder zone at the desired temperature. The Heater
Current Monitor option is used to provide a readout of the
heater current. The multi-function User Input can be
programmed to allow selection of manual operation when
connected to common. This allows the user to hold the
control output of the controller during abnormal process
conditions.
APPLICATION
(Terminal assignments are model number dependent.)
(Terminal assignments are model number dependent.)
(Terminal assignments are model number dependent.)

F
5731-717-767-6511
MODELS WITH RS485 OR LINEAR DC ANALOG OUTPUT
ORDERING INFORMATION
Options and Output Boards are factory configured per the part number specified. Part numbers without
replacement output boards listed must be returned to the factory for output board replacement.
MODELS WITHOUT RS485 AND LINEAR DC ANALOG OUTPUT
NA
RBD48211
RBD48211
RBD48211
RBD48211
RBD48200
RBD48111
RBD48111
RBD48111
RBD48111
RBD48100
REPLACEMENT
OUTPUT
BOARD
Logic/SSR T4832200T4832210Logic/SSRTriac
Relay T4821104T4821114YESRelayLogic/SSR
Relay T4821103T4821113YESRelayLogic/SSR
Relay T4821100T4821110RelayLogic/SSR
Relay T4821000NALogic/SSR
T4820000T4820010Logic/SSR
Relay T4811104T4811114YESRelayRelay
Relay T4811103T4811113YESRelayRelay
Relay T4811100T4811110RelayRelay
Relay T4811000NARelay
T4810000T4810010Relay
PART NUMBERS
85 TO 250 VAC18-36 VDC/24 VAC
DEDICATED
ALARM 1
A1 OUTPUT
*- This output is programmable as either Control (PID) or as an Alarm.
@ - These part numbers are equipped with a second setpoint.
T4821102T4821112
T4820209T4820219
T4820208T4820218
T4820206T4820216
T4820205T4820215
T4820201T4820211
T4811102T4811112
T4810109T4810119
T4810108T4810118
T4810107T4810117
T4810106T4810116
T481010AT481011A
T4810105T4810115
T4810101T4810111
T4810002NA
PART NUMBERS
85 TO 250 VAC18-36 VDC/24 VAC
Relay YESRelayLogic/SSR
Logic/SSR YESYESLogic/SSR
Logic/SSR YES YESLogic/SSR
Logic/SSR YESLogic/SSR YES
Logic/SSR YESLogic/SSR YES
Logic/SSR YESLogic/SSR
Relay YES 2
RelayRelay
Relay YESYESRelay
Relay YES YESRelay
Relay YESRelay YES
Relay YESRelay YES
Relay YESYESRelay
Relay YESRelay YES
Relay YESRelay
YES 1
Relay
SECOND
ANALOG
OUTPUT** @
HEATER
CURRENT
INPUT @
DEDICATED
MAIN CONTROL
O1 OUTPUT
DEDICATED
ALARM 1
A1 OUTPUT
RS485
@
*- This output is programmable as either Control (PID) or as an Alarm.
** -This output is jumper and program selectable for either a current or voltage Linear DC output.
@ - These part numbers are equipped with a second setpoint.
1 - Replacement Output Board RBD48100 may be used.
2 - Replacement Output Board RBD48111 may be used.
DESCRIPTION PART NUMBERS
RLY
Three Phase DIN Rail Mount SSR
Single Phase 40 A DIN Rail Mount SSR
Single Phase 25 A DIN Rail Mount SSR
External SSR Power Unit (for Logic/SSR output models)
RLY70000
RLY6A000
RLY60000
RLY50000
CT 40 Ampere Current Transformer (for Heater Current Input models) CT004001
50 Ampere Current Transformer (for Heater Current Input models) CT005001
ICM5
ICM4
SFCRM
ICM40030
SFCRM
Three way isolated RS232/RS485 Serial Converter
RS232/RS485 Serial Converter Module
ACCESSORIES
REMOTE
SETPOINT
INPUT @
DEDICATED
MAIN CONTROL
01 OUTPUT
REMOTE
SETPOINT
INPUT @
HEATER
CURRENT
INPUT @
(ALARM 2)
A2 OR 02
(COOL)*
(ALARM 2)
A2 OR O2
(COOL) *
MAIN CONTROL
O1 OR A1
(ALARM 1) *
MAIN
ANALOG
OUTPUT** @
Option Boards are installed at the factory for the appropriate models. These boards are only needed for field replacement.
Crimson 2 PC Configuration Software for Windows 98, ME, 2000 and XP (for RS485 models)
ICM50000
* Crimson software is available for download from http://www.redlion.net
MODEL NO.

F
574 www.redlion.net
100 msec SAMPLING PERIOD WITH 0.15% ACCURACY
ON DEMAND AUTO-TUNING OF PID CONTROL SETTINGS
DUAL LED DISPLAYS FOR SIMULTANEOUS INDICATION OF
TEMPERATURE AND SETPOINT, SECOND ANALOG INPUT OR
HEATER CURRENT
ACCEPTS 10 DIFFERENT TYPES OF SENSOR INPUTS
(Thermocouple or RTD)
SELF-DIAGNOSTICS
FULL PID CONTROL WITH REDUCED OVERSHOOT
OPTIONAL RS485 SERIAL COMMUNICATIONS INTERFACE
OPTIONAL DUAL ALARM OUTPUTS (USES OUTPUT MODULES)
OPTIONAL COOLING OUTPUT (USES OUTPUT MODULE)
OPTIONAL LINEAR 4 to 20 mA or 0 to 10 VDC OUTPUT FOR
CONTROL OR TEMPERATURE RE-TRANSMISSION
OPTIONAL HEATER CURRENT MONITOR AND BREAK ALARM
OPTIONAL MOTORIZED VALVE POSITION CONTROL AND
VALVE FAIL ALARM
OPTIONAL SECOND ANALOG INPUT FOR REMOTE SETPOINT
AND CASCADE CONTROL
OPTIONAL NEMA 4X/IP65 SEALED FRONT BEZEL
STATUS INDICATORS FOR OUTPUTS AND CONTROL MODES
PROGRAMMABLE USER INPUT (DIGITAL) FOR ADDED
FLEXIBILITY
SENSOR ERROR COMPENSATION (Slope and Offset) AND
BREAK DETECTION
MANUAL/AUTOMATIC AND LOCAL/REMOTE SETPOINT
CONTROL MODES
SETPOINT RAMPING FOR PROCESS STARTUP
PARAMETER SECURITY VIA PROGRAMMABLE LOCKOUTS
FIELD REPLACEABLE AND INTERCHANGEABLE OUTPUT
MODULES (Relay, Logic/SSR Drive and Triac)
DESCRIPTION
The TCU Controller accepts signals from a variety of temperature sensors
(thermocouple or RTD elements), precisely displays the process temperature,
and provides an accurate output control signal (time proportional or linear) to
maintain a process at the desired control point. A comprehensive set of easy to
use steps allows the controller to solve various application requirements.
The controller can operate in the PID control mode for both heating and
cooling, with on-demand auto-tune, which will establish the tuning constants.
The PID tuning constants may be fine-tuned by the operator at any time and then
locked out from further modification. The controller employs a unique overshoot
suppression feature, which allows the quickest response without excessive
overshoot. The unit can be transferred to operate in the manual mode, providing
the operator with direct control of the output. The controller may also be
programmed to operate in the ON/OFF control mode with adjustable hysteresis.
Dual 4-digit displays allow viewing of the process temperature and setpoint
simultaneously. Front panel indicators inform the operator of the controller and
output status. Replaceable and interchangeable output modules (relay, SSR
drive, or triac) can be installed for the main control output, alarm output(s) and
cooling output.
Optional dual alarms can be configured to activate according to a variety of
actions (Absolute HI or LO, Deviation HI or LO, Band IN or OUT, Heater
Break and Valve Fail Detect) with adjustable hysteresis. A standby feature
suppresses the output during power-up until the temperature stabilizes outside
the alarm region. An optional secondary output is available (for processes that
require cooling) which provides increased control accuracy and response.
MODEL TCU - TEMPERATURE CONTROL UNIT
DIMENSIONS In inches (mm) Note: Recommended minimum clearance (behind the panel) for mounting clip installation is 5.5" (140) H x 2.1" (53.4) W.
C
C
US LISTED
US LISTED
UL
R
IND. CONT. EQ.
51EB
PANEL CUT-OUT

F
5751-717-767-6511
DESCRIPTION (Cont’d)
OPTIONS
A linear 4 to 20 mA or 0 to 10 VDC output signal is available to interface
with actuators, chart recorders, indicators, or other controllers. The output signal
can be digitally scaled and selected to transmit one of the following: % output
power, process temperature value, process temperature value deviation or
setpoint value. For Linear DC control applications, the adjustable output
demand dampening, output deadband and output update time parameters
expand the versatility of the TCU with final control devices.
The optional Heater Current Monitor serves as a digital ammeter for heater
current monitoring. Current transformer accessory (CT005001), is required. An
alarm event output can be programmed to signal when the heater or heater
control devices have failed, before damage to process material occurs. The
Heater Break alarm triggers under two conditions:
1) The main output (OP1) is “on” and the heater current is below the heater
current alarm value, indicating an aged or failed heater.
2) Output (OP1) is “off” and the heater current is more than 10% of the alarm
value, indicating a shorted heater control device or other problem.
The optional Motorized Valve Positioner directly controls the position of a
valve by the use of twin outputs (open and close) to control the direction of
motor rotation. The motor position defines the opening position of the valve.
Two control modes are possible: position control, which makes use of the
slidewire feedback signal supplied with the positioner and velocity control, in
which no slidewire feedback signal is used. Parameters are provided to adjust
the operation of the valve. These include:
Valve activity hysteresis
Valve update time
Variable control dampening
Slidewire signal fail action
Adjustable valve position limits.
The valve positioner TCU achieves tight process control, yet minimizes
unnecessary valve activity. An alarm event output or display alarm can be
programmed under loss of slidewire feedback or under valve fail detection.
The optional Second Analog Input (0-20 mA DC) can be configured as a
remote setpoint signal or as a secondary process signal. Configuration of the
second analog input as a remote setpoint signal allows ratio control, master
setpoint/multiple slave operation, and the ability to cascade the TCU with
another controller (external cascade). Configuration of the second input as a
secondary process signal allows operation as a two-process cascade controller
within a single unit (internal cascade). In either control mode, parameters are
provided to scale, configure, communicate and monitor the activity of both
analog inputs. A square law linearizer function can be used to linearize signals
derived from flow transmitters.
The optional RS485 multidrop serial communication interface provides two-
way communication between a TCU unit and other compatible equipment such
as a printer, a programmable controller, or a host computer. In multipoint
applications the address number of each unit on the line can be programmed from
0-99. Up to thirty-two units can be installed on a single pair of wires. The
Setpoint value, % Output Power, Setpoint Ramp Rate, etc. can be interrogated or
changed by sending the proper command code via serial communications. Alarm
output(s) may also be reset via the serial communications interface option.
An optional NEMA 4X/IP65 rated bezel is available for wash down and/or
dirty environments, when properly installed. Modern surface-mount
technology, extensive testing, plus high immunity to noise interference makes
the controller extremely reliable in industrial environments.
SAFETY SUMMARY
All safety related regulations, local codes and instructions that appear in the
manual or on equipment must be observed to ensure personal safety and to
prevent damage to either the instrument or equipment connected to it. If
equipment is used in a manner not specified by the manufacturer, the protection
provided by the equipment may be impaired.
Do not use the TCU to directly command motors, valves, or other actuators
not equipped with safeguards. To do so, can be potentially harmful to persons
or equipment in the event of a fault to the unit. An independent and redundant
temperature limit indicator with alarm outputs is strongly recommended. Red
Lion Controls model IMT (thermocouple) or model IMR (RTD) units may be
used for this purpose. The indicators should have input sensors and AC power
feeds independent from other equipment.
SPECIFICATIONS
1. DISPLAY: Dual 4-digit
Upper Temperature Display: 0.4" (10.2 mm) high red LED
Lower Auxiliary Display: 0.3" (7.6 mm) high green LED
Display Messages (Model dependent):
“OLOL” - Appears when measurement exceeds + sensor range.
“ULUL” - Appears when measurement exceeds - sensor range.
“OPEN” - Appears when open sensor is detected.
“SHrt” - Appears when shorted sensor is detected (RTD only)
“....” - Appears when display values exceed + display range.
“-...” - Appears when display values exceed - display range.
“SLid” - Appears when loss of slidewire signal is detected.
“VALV” - Appears when valve actuator error is detected.
2. POWER: 115/230 VAC (+10%, -15%) no observable line variation effect, 48
to 62 Hz, 10 VA, switch selectable
3. ANNUNCIATORS:
LED Backlight Status Indicators (Model dependent):
%PW - Lower auxiliary display shows power output in (%).
DEV - Lower auxiliary display shows deviation (error)
from temperature setpoint.
OP1 - Main control output is active.
AL1 - Alarm #1 is active.
AL2 - Alarm #2 is active (for Dual Alarm Option).
OP2 - Cooling output is active (for Cooling Option).
OPN - Valve positioner OPEN output is active
(for Valve Positioner option).
CLS - Valve positioner CLOSE output is active
(for Valve Positioner option).
CUR - Lower auxiliary display shows heater current
(for Heater Current Monitor option).
SEC - Lower auxiliary display shows second analog input
(For Second Analog Input option).
MAN - Flashing: Controller is in manual mode.
REM - ON: controller is in remote setpoint mode
(Second Analog Input option).
- OFF: controller is in local setpoint mode
(Second Analog Input option).
- Flashing: controller is in Manual control mode
(Second Analog Input optional).
4. CONTROLS: Four front panel push buttons for modifying and setup of
controller functions and one external input for parameter lockout or other
functions.
5. MAIN SENSOR INPUT:
Sample Period: 100 msec
Response Time: 300 msec (to within 99% of final value w/step input;
typically, response is limited to response time of probe)
Failed Sensor Response:
Main Control Output(s): Programmable preset output
Display: “OPEN”
Alarms: Upscale drive
DC Linear: Programmable preset output
Normal Mode Rejection: 40 dB @ 50/60 Hz (improves with increased
digital filtering.
Common Mode Rejection: 100 dB, DC to 60 Hz
Protection: Input overload 120 VAC for 30 seconds.
6. THERMOCOUPLE:
Types: T, E, J, K, R, S, B, N, Linear mV
Input Impedance: 20 M Ωall types
Lead resistance effect: 20 μV/350 Ω
Cold junction compensation: Less than ±1°C error over 0 - 50°C ambient
temperature range. Disabled for Linear mV type.
Resolution: 1°C/F all types, or 0.1°C/F for T, E, J, K, and N only.
7. RTD: 2, 3 or 4 wire, 100 Ωplatinum, alpha = 0.00385 (DIN 43760),
alpha = 0.003916
Excitation: 0.175 mA
Resolution: 1 or 0.1 degree
Lead Resistance: 7 Ωmaximum
TC TYPE RANGE ACCURACY WIRE COLOR
(ANSI)
T-200 to +400°C
-328 to +752°F
0.20% + 1.5°C
0.20% + 2.7°F blue
E-200 to 750°C
-328 to +1382°F
0.20% + 1.5°C
0.20% + 2.7°F violet
J-200 to +760°C
-328 to +1400°F
0.15% + 1.5°C
0.15% + 2.7°F white
K-200 to +1250°C
-328 to +2282°F
0.20% + 1.5°C
0.20% + 2.7°F yellow
R0 to +1768°C
+32 to +3214°F black
S0 to +1768°C
+32 to +3214°F
0.15% + 2.5°C
0.15% + 4.5°F black
B+200 to +1820°C
+300 to +3308°F
0.15% + 2.5°C
0.15% + 4.5°F grey
N-200 to +1300°C
-328 to +2372°F
0.20% + 1.5°C
0.20% + 2.5°F orange
mV -5.00 to 56.00 0.15% + 1 LSD __
RTD
(385)
-200 to +600°C
-328 to +1100°F
0.10% + 0.5°C
0.10% + 0.9°F
__
RTD
(392)
-200 to +600°C
-328 to +1100°F
0.10% + 0.5°C
0.10% + 0.9°F
__
OHMS 1.0 to 320.0 0.15% + 1 LSD __
0.15% + 2.5°C
0.15% + 4.5°F

F
576 www.redlion.net
8. RANGE AND ACCURACY:
Errors include NIST conformity and A/D conversion errors at 23°C after 20
min. warm-up. Thermocouple errors include cold junction effect. Errors are
expressed as ±percent of reading and ± 3
/4LSD unless otherwise noted.
9. OUTPUT MODULES [Optional] (For All Output Channels):
Relay:
Type: Form-C (Form-A with some models. See Ordering Information.)
Rating: 5 Amps @ 120/240 VAC or 28 VDC (resistive load), 1/8 HP @
120 VAC (inductive load)
Life Expectancy: 100,000 cycles at max. load rating. (Decreasing load
and/or increasing cycle time, increases life expectancy).
Logic/SSR Drive: Can drive multiple SSR Power Units.
Type: Non-isolated switched DC, 12 VDC typical
Drive: 45 mA max.
Triac:
Type: Isolated, Zero Crossing Detection
Rating:
Voltage: 120/240 VAC
Max. Load Current: 1 Amp @ 35°C
0.75 Amp @ 50°C
Min. Load Current: 10 mA max.
Offstate Leakage Current: 7mA max. @ 60 Hz
Operating Frequency: 20 to 400 Hz
Protection: Internal Transient Snubber, Fused
10. MAIN CONTROL OUTPUT (Heating or Cooling):
Control: PID or ON/OFF
Output: Time proportioning or linear DC
Hardware: Plug-in, replaceable output modules
Cycle time: Programmable
Auto-tune: When selected, sets proportional band, integral time, and
derivative time values.
Probe Break Action: Programmable
11 . COOLING OUTPUT (Optional):
Control: PID or ON/OFF
Output: Time proportioning or linear DC
Hardware: Plug-in, replaceable output modules
Cycle time: Programmable
Proportional Gain Adjust: Programmable
Heat/Cool Deadband Overlap: Programmable
12. LINEAR DC OUTPUT (Optional): With digital scale and offset,
programmable deadband and update time.
4 to 20 mA:
Resolution: 1 part in 3500 typ.
Accuracy: ±(0.1% of reading + 25 μA)
Compliance: 10 V (500 Ωmax. loop impedance)
0 to 10 VDC:
Resolution: 1 part in 3500 typ.
Accuracy: ±(0.1% of reading + 35 mV)
Min. Load Resistance: 10 KΩ(1 mA max.)
Source: % output power, setpoint, deviation, or temperature
(Available for heat or cool, but not both.)
13. HEATER CURRENT MONITOR (Optional):
Type: Single phase, full wave monitoring of load currents controlled by main
output (OP1)
Input: 100 mA AC output from current transformer RLC part number
CT005001 or any current transformer with 100 mA AC output
Display Scale Range: 1.0 to 999.9 amperes or 100.0%
Input resistance: 5 Ω
Accuracy: 1% of full scale ±1 LSD (10 to 100% of range)
Frequency: 50 to 400 Hz
Alarm mode: Dual acting; heater element fail detect and control device fail
detect
Overload: 200 mA (steady state)
Min. output “on” time for Heater break alarm detect: 400 msec
14. MOTORIZED VALVE POSITIONER (Optional):
Two Outputs: Valve open and valve close or Linear DC (optional)
Hardware: Plug-in, replaceable output modules
Three Inputs: Slidewire feedback, signal fail detect (Isolated from main
input)
Slidewire Resistance: 100 to 100 KΩ
Slidewire Exciting Voltage: 0.9 VDC
Slidewire Fail Action: programmable
Control Mode: Position mode (with slidewire) and velocity mode (w/o
slidewire).
Control Deadband: 1% to 25.0% (position mode)
0.1 to 25.0 seconds (velocity mode)
Update Time: 1 to 250 seconds
Motor Time (open, close): 1 to 9999 seconds
Position Limits: Adjustable 0.0 to 100.0% of valve stroke
Valve Fail Time: Off to 9999 seconds
Alarm mode: Dual acting; loss of slidewire feedback signal and valve fail
detection
15. SECOND ANALOG INPUT:
Range: 0 to 20 mA (Isolated from main input)
Overload: 100 mA (steady state)
Input Resistance: 10 Ω
Voltage Drop (@ 20 mA): 0.2 V
Accuracy: 0.15% of reading ±10 μA ±1 LSD
Scale Range: -999 to 9999
16. SERIAL COMMUNICATION:
Type: RS485 Multi-point, Balanced Interface
Communication Format:
Baud Rate: Programmable from 300 to 9600
Parity: Programmable for odd, even, or no parity
Frame: 1 start bit, 7 data bits, 1 or no parity bit, 1 stop bit
Unit Address: Programmable from 0 to 99, max. of 32 units per line
Transmit Delay: 100 msec min., 200 msec max.
RS485 Common: Isolated from signal input common
Auto Print Time: Off to 9999 seconds between print-outs
17. USER INPUT (Optional): Internally pulled up to +5 VDC.
VIN MAX = 5.25 VDC, VIL = 0.85 VMAX; VIH = 3.0 VMIN,
Available on all second input (HCM, MVP & ANA) models, and on models
with RS485.
Response Time: 100 msec max.
Functions: Program Lock
Integral Action Lock
Auto/Manual Mode Select
Setpoint Ramp Select
Reset Alarms
Print Request
Local/Remote Setpoint Select
18. ALARMS (Optional):
Hardware: Plug-in, replaceable output module
Modes: Absolute high acting
Absolute low acting
Deviation high acting
Deviation low acting
Inside band acting
Heater break
Valve fail
Second Analog Input monitoring
Reset Action: Programmable; automatic or latched
Standby Mode: Programmable; enable or disable
Hysteresis: Programmable
Probe Break Action: Upscale
Annunciator: LED backlight for “AL1”, “AL2”, (Alarm #2 not available
with cooling output or motorized valve position option.)
19. ENVIRONMENTAL CONDITIONS:
Operating Temperature Range: 0 to 50°C
Storage Temperature Range: -40 to 80°C
Span Drift (maximum): 100 ppm/°C, main input; 150 ppm/°C, second input
Operating and Storage Humidity:
85% max. (non-condensing) from 0 to 50°C
Zero Drift (maximum): 1 μV/°C, main input;2 μA/°C, second input
Altitude: Up to 2000 meters
20. ISOLATION BREAKDOWN RATINGS:
All inputs and outputs with respect to AC line: 2300 V
Analog Outputs, Second Analog Input, Heater Current Input or
Slidewire Input with respect to main input: 500 V
21. CERTIFICATIONS AND COMPLIANCES:
SAFETY
UL Listed, File #E137808, UL508, CSA C22.2 No. 14-M95
LISTED by Und. Lab. Inc. to U.S. and Canadian safety standards
UL Recognized Component, File #E156876, UL873, CSA 22.2 No. 24
Recognized to U.S. and Canadian requirements under the Component
Recognition Program of Underwriters Laboratories, Inc.
Type 2 or 4X Enclosure rating (Face only), UL50
IECEE CB Scheme Test Certificate # UL1239-156876/USA,
CB Scheme Test Report # 96ME50279-070794
Issued by Underwriters Laboratories, Inc.
IEC 1010-1, EN 61010-1: Safety requirements for electrical equipment
for measurement, control, and laboratory use, Part 1.
IP65 Enclosure rating (Face only), IEC 529

F
5771-717-767-6511
ELECTROMAGNETIC COMPATIBILITY
Notes:
1. Self-recoverable loss of performance during EMI disturbance at 10 V/m:
Analog output signal, Heater Current Monitor input and Motorized
Valve Positioner input signal may deviate during EMI disturbance.
For operation without loss of performance:
Install power line filter, RLC #LFIL0000 or equivalent.
2. Self-recoverable loss of performance during EMI disturbance at 10 Vrms:
Analog output signal may deviate during EMI disturbance.
For operation without loss of performance:
a. Install power line filter, RLC #LFIL0000 or equivalent.
b. Install 1 ferrite core 1 turn, RLC #FCOR0000 or equivalent, to
cable at unit.
Refer to the EMC Installation Guidelines section of the manual for additional
information.
22. CONNECTION: Jaw-type terminal block
Wire Range: 12-30 AWG copper wire
Torque: 5-7 inch-lbs (56-79 N-cm)
23. CONSTRUCTION: NEMA 2 For Standard Models.
Front Panel: Flame and scratch resistant tinted plastic
Case: High impact black plastic. (Mounting collar included)
NEMA 4X/IP65 model only: Sealed bezel utilizing two captive mounting
screws (panel gasket included). This unit is rated for NEMA 4X/IP65
indoor use. Installation Category II, Pollution Degree 2
24. WEIGHT: 1.3 lbs (0.6 kgs)
ACCESSORIES:
External SSR Power Unit:
Switched Voltage Range: 50 to 280 VAC (Nominal: 240 VAC)
Load Current: 45 Amps @ 25°C ambient temperature
35 Amps @ 50°C ambient temperature
On State Input: 3 to 32 VDC @ 1500 Ωimpedance. (isolated)
(Use Logic/SSR drive output module.)
Off State Input: 0.0 to 1.0 VDC
Size: 5.5" (14 cm) L x 4.75" (12 cm) W x 2.62" (6.6 cm) H
Current Transformer:
Current Ratio: 50:0.1 (Amperes)
Accuracy: ±5.0%
Operating Frequency: 50 to 400 Hz
Insulation Class: 0.6 Kv BIL 10 Kv full wave
Terminals: Brass studs No. 8-36, (flat washer, washer, nut)
Weight: 8.0 oz (226 g)
Approvals: UL recognized component
BASIC OPERATION
The TCU controls a process temperature by measuring the temperature via an
input probe, then calculating a control output power value by use of a modified
PID control algorithm. The unit controls the system with the new output power
value to keep the process temperature at setpoint. The PID control algorithm
incorporates features which provide for high control accuracy and low
temperature overshoot from process disturbances.
FRONT PANEL FEATURES
In the normal operating mode, the unit will display the process temperature
in the upper display. One of six other parameters can be viewed in the lower
display:
- Setpoint
- % Power Output
- Temperature Deviation
- Heater Current
- Second Input Process Value
- Temperature Symbol (F or C)
The six parameters can be scrolled through by pressing the DSP button. If
enabled, the control setpoint or power output (manual mode only) can be
directly modified in this mode.
In the normal operating mode, parameters are selected by use of the PAR
button and modified by use of the UP and DOWN buttons. Parameters are then
entered by the PAR button, which advances the user to the next parameter.
Pressing the DSP button immediately returns the controller to the normal
operating mode when making a parameter change. The controller’s
configuration and parameter settings are stored in an internal E2PROM device.
HARDWARE FEATURES
The fast 100 msec input sampling rate provides quick controller response to a
process disturbance, thus providing excellent temperature control. Measurement
accuracy of 0.15% or better, provides closer process control conforming to the
desired control setpoint value. One model accepts a variety of both thermocouple
or RTD temperature probes. The AC input power is switch selectable, allowing
the unit to operate from either 115 VAC or 230 VAC. Since the controller is
serviceable from the front of the panel, the output modules may be easily changed
or replaced without disturbing the wiring behind the panel. No re-programming is
required when changing or replacing modules.
The optional NEMA 4X/IP65 rated model utilizes two bezel securing screws
and a neoprene gasket to guarantee a water tight seal, when properly installed.
The standard model simply requires pressing a latch to remove the unit.
Low-drift, highly stable circuitry ensures years of reliable and accurate
temperature control. The recommended two-year re-calibration interval is easily
accomplished via the programming menu.
SETPOINT FEATURES
The controller setpoint can be protected from out of range values by
programming the setpoint range limit values. Additionally, safeguards from
inadvertent data entry can be programmed.
The setpoint ramp feature ramps the setpoint value at start-up or any time a
setpoint change is made, at a user programmable rate. This feature reduces
thermal shock to the process and helps to minimize temperature overshoot.The
setpoint may also be transmitted by the optional linear DC output for slave
control loops.
The second analog input may be configured as a remote setpoint. As such, the
controller is easily switched from local/remote setpoint operation via the front
panel or user input. Ratio and bias parameters provide on-line scaling of the
remote setpoint. Absolute limit values and maximum rate of change of the
remote setpoint further enhance controller flexibility.
INPUT FEATURES
A programmable input filter can be used to stabilize readings from a process
with varying or oscillating temperature characteristics, helping to provide better
temperature control. A programmable temperature shift and slope function can
be used to compensate for probe errors or to have multiple TCU units indicate
the same nominal temperature.
The programmable User Input can be used to control a variety of functions,
such as auto/manual transfer of the controller, reset alarm output(s), etc.
The second analog input has independent scaling parameters to match the
units of other processes or transmitters, or to match the controller’s range.
OUTPUT FEATURES
Programmable output power limits provide protection for processes where
excessive power can cause damage. Automatic sensor probe break detection, for
fail-safe operation, causes the controller to default to a programmed output
power (upscale or downscale burnout). With adjustable time proportioning-
cycle time, and programmable DC linear output, the controller can satisfy a
wide variety of output requirements.
Programmable dampening output hysteresis and output update time parameters
can dramatically reduce actuator activity without degrading control accuracy.
The RS485 Communication option allows the user to access various
controller parameters such as the setpoint, % output power, % proportional
band, etc. The controller may be setup to transmit various parameters at a
programmable automatic print rate.
AUTO-TUNE
The TCU has an auto-tune feature which, on demand, automatically
determines the PID control parameters for a particular thermal process. After
completion of auto-tune, the PID parameters are automatically optimized for
that process and loaded into nonvolatile memory. The operator may view and
modify the parameters as desired.
Auto-tune may be invoked either at start-up or at setpoint, depending on the
process requirements. An auto-tune programmable dampening factor produces
various levels of process control and response characteristics.
Immunity to EN 50082-2
Electrostatic discharge EN 61000-4-2 Level 2; 4 Kv contact
Level 3; 8 Kv air
Electromagnetic RF fields EN 61000-4-3 Level 3; 10 V/m1
80 MHz - 1 GHz
Fast transients (burst) EN 61000-4-4 Level 4; 2 Kv I/O
Level 3; 2 Kv power
RF conducted interference EN 61000-4-6
150 KHz - 80 MHz
Emissions to EN 50081-2
RF interference EN 55011 Enclosure class A
Power mains class A

F
578 www.redlion.net
OPTIONS
HEATING AND COOLING CONTROL
The TCU has dual outputs for providing heating and cooling to those
processes that require them. Many extruder applications require both heating
and cooling to maintain accurate extruder barrel and die temperatures. The TCU
is easily configured for these applications.
Cooling Configuration Parameters
“CYC2” - Enter cooling time proportioning cycle time
“GAN2” - Enter cooling relative gain
“db-2” - Enter heat/cool deadband or overlap
HEATER CURRENT MONITOR
The Heater Current Monitor serves as a heater element fail sentry, so
operators can take corrective action before significant process errors occur in
the event of a failure. The actual heater current can be viewed in the secondary
display and/or a heater break alarm output can be programmed.
Heater Current Monitor Configuration Parameters
“HCur” - Enter full scale current of current transformer
ACt1”, “ACt2” - Program alarm(s) as heater break alarm
MOTORIZED VALVE POSITIONER
The motorized valve positioner controls the position of a valve directly, by use
of “open” and “close” control outputs. The slidewire feedback signals of the valve
may optionally be connected to the controller. Alternatively, the controller may be
configured for linear input valve control using the 4 to 20 mA DC output.
Motorized Valve Positioner Configuration Parameters
Position mode: “VPS1” - Enter or measure valve closed position
“VPS2” - Enter or measure valve open position
“VUdt” - Enter Valve update time
“VPdb” - Enter valve control deadband
“VFAL” - Enter valve fail detect time
“Act1” - Program alarm as valve fail output
Velocity mode: “VUdt” - Enter Valve update time
“VOPt” - Enter valve open time
“VCLt” - Enter valve close time
“VONt” - Enter valve control deadband
(minimum on time)
INTERNAL CASCADE
Cascade control allows the process to be divided into two control loops: the
primary control loop and the secondary control loop. The secondary loop
receives it’s setpoint from the primary loop to control an intermediate variable
(steam pressure). The control level of the intermediate variable is the input to
the primary process. The primary loop (temperature) controller maintains loop
regulation by manipulating the setpoint of the secondary controller. The
setpoint of the secondary controller, in turn, changes the intermediate variable.
The secondary loop can react faster to disturbances of the intermediate variable,
thereby minimizing the effects to the primary control loop. Control loops
cascaded in such a manner provide greater control quality than would be
possible with single loop control. A single TCU can accomplish two-process
cascade control.
Internal Cascade Configuration Parameters
“OPer” - Select cascade mode
“root” - Select second input square root linearization
“dPt2” - Select second input decimal point
“dSP1” - Enter scaling units of second input
“INP1” - Enter scaling units of second input
“dSP2” - Enter scaling units of second input
“INP2” - Enter scaling units of second input
“OPd2” - Output dampening of secondary
Internal Cascade Operational Parameters
“SP-2” - View secondary setpoint value
“Pb-2” - Enter secondary proportional band
“It-2” - Enter secondary integral time
“dt-2” - Enter secondary derivative time
EXTERNAL CASCADE
Similar to internal cascade control, external cascade control differs by the
employment of two controllers, one of which is equipped with a second analog
input configured as a remote setpoint. A PCU controls the secondary loop, while
a TCU controls the primary loop.
External Cascade Configuration Parameters
“OPEr” - Select ratio mode
“root” - Select second input square root linearization
“dPt2” - Select second input decimal point
“dSP1” - Enter scaling units of second input
“INP1” - Enter scaling units of second input
“dSP2” - Enter scaling units of second input
“INP2” - Enter scaling units of second input
“SPtr” - Local/Remote select options
External Cascade Operational Parameters
“rtio” - Remote setpoint ratio
“bIAS” - Remote setpoint bias

F
5791-717-767-6511
CONTROLLER PROGRAMMING
The TCU has been designed to reduce the operator interaction with the
controller while still maintaining a high degree of control accuracy and user
flexibility. Front Panel Program Disable allows all of the controller’s set-ups to be
locked-out from further operator intervention after the initial parameter set-up.
The programming of the controller is divided into four sections:
Unprotected Parameter Mode
Configuration Parameter Mode
Protected Parameter Mode
Hidden Function Mode
These four programming modes allow the controller to adapt to any required
user-interface level.
UNPROTECTED PARAMETER MODE *
The unprotected parameter mode is accessible when program disable is
inactive or when the proper access code number from the protected mode is
entered.The configuration parameter modes can be accessed only from this mode.
“SP” - Enter Setpoint
“OP” - Enter output power
“ProP” - Enter proportional band
“Intt” - Enter integral time
“dErt” - Enter derivative time
“rtio” - Enter Remote Setpoint ratio value
“bIAS” - Enter Remote Setpoint bias value
“SP-2” - View internal cascade secondary setpoint
demand
“Pb-2” - Enter internal cascade, secondary
proportional band
“It-2” - Enter internal cascade, secondary integral
time
“dt-2” - Enter internal cascade, secondary
derivative time
“AL-1” - Enter value for alarm #1
“AL-2” - Enter value for alarm #2
“CNFP” - Select basic configuration mode
“End” - Return to normal display mode
*These parameters may not appear due to option configuration or other
programming.
CONFIGURATION PARAMETER MODE
The configuration parameter mode allows the operator to set-up the basic
requirements of the controller. It is divided into sections which group together
related programming steps, such as inputs, outputs, alarms, etc. Upon
completion of each section, the program returns to the configuration selection
stage allowing the user to return to the normal display mode.
Configuration 1, Inputs
“tYPE” - Select input probe type
“SCAL” - Select temperature scale
“dCPt” - Select temperature resolution
“FLtr” - Select level of input filtering
“SPAN” - Enter input correction span (slope)
“SHFt” - Enter input correction shift (offset)
“SPLO” - Enter setpoint lower limit
“SPHI” - Enter setpoint higher limit
“SPrP” - Enter setpoint ramp rate
“InPt” - Select user input function *
“HCur” - Enter full scale heater current *
Configuration 2, Outputs
“CYCt” - Enter time proportioning cycle time
“OPAC” - Select control action
“OPLO” - Enter output power low limit
“OPHI” - Enter output power high limit
“OPFL” - Enter probe fail power preset
“OPdP” - Enter output control dampening
“CHYS” - Enter ON/OFF control hysteresis
“tcod” - Select auto-tuning dampening
“ANAS” - Select linear DC output assignment *
“ANLO” - Enter linear DC output low scaling value *
“ANHI” - Enter linear DC output high scaling value *
“ANdb” - Enter linear DC output control deadband *
“ANUt” - Enter linear DC output update time *
Configuration 3, Parameter lock-outs
“SP” - Select degree of setpoint access
“OP” - Select degree of power access
“dEv” - Enable deviation display *
“IN-2” - Enable second input display *
“HCur” - Enable heater current display
“UdSP” - Enable temperature scale display
“CodE” - Enter parameter access code
“PId” - Select degree of PID access
“PId2” - Select degree of secondary PID access *
“rtbS” - Select degree of ratio/bias access *
“AL” - Select degree of alarm access *
“ALrS” - Enable alarm reset access *
“SPSL” - Enable local/remote setpoint selection *
“trnF” - Enable auto/manual mode selection
“tUNE” - Enable auto-tune invocation
Configuration 4, Alarms *
“Act1” - Select operation mode of alarm #1
“rSt1” - Select reset mode of alarm #1
“Stb1” - Enable activation delay of alarm #1
“AL-1” - Enter value for alarm #1
“Act2” - Select operation mode of alarm #2
“rSt2” - Select reset mode of alarm #2
“Stb2” - Enable activation delay of alarm #2
“AL-2” - Enter value for alarm #2
“AHYS” - Enter hysteresis value for both alarms
Configuration 5, Cooling *
“CYC2” - Enter cooling time proportioning cycle time
“GAN2” - Enter cooling relative gain
“db-2” - Enter heat/cool deadband or overlap
SETPOINT MASTER CONTROL
Setpoint Master Control allows automatic setpoint changes to slave
controller units (up to 50 units total) from a master TCU controller.
The linear DC output of the master is looped with the second analog
input of the slave TCU controllers. Each slave unit can have unique
remote setpoint ratio and bias values.
Setpoint Slave Configuration Parameters
“OPEr” - Select remote setpoint mode
“root” - Select second input square root
Linearization
“dPt2” - Select second input decimal point
“dSP1” - Enter scaling units of second input
“INP1” - Enter scaling units of second input
“dSP2” - Enter scaling units of second input
“INP2” - Enter scaling units of second input
“SPLO”
“SPHI” - Limit range of remote setpoint
“SPrP” - Limit rate of change of remote
setpoint
Setpoint Slave Operational Parameters
“rtio” - Second input ratio
“bIAS” - Second input bias

F
580 www.redlion.net
Configuration 6, Serial Communications *
“bAUd” - Select baud rate
“PArb” - Select parity bit
“Addr” - Enter unit address number
“Abrv” - Select abbreviated or full mnemonic
transmissions
“PrAt” - Enter automatic print rate
“PoPt” - Select parameters to be included in print-out
Configuration 7, Second Input *
“OPEr” - Select remote setpoint or internal
cascade mode
“root” - Select second input square root linearization
“dPt2” - Select second input decimal point
“dSP1” - Enter scaling parameters of second input
“INP1” - Enter scaling parameters of second input
“dSP2” - Enter scaling parameters of second input
“INP2” - Enter scaling parameters of second input
“SPtr” - Enter local/remote select options
“OPd2” - Enter Secondary output control dampening
Configuration 8, Motorized Valve Positioner *
Position mode: “VPS1” - Enter or measure valve closed position
“VPS2” - Enter or measure valve open position
“VUdt” - Enter valve update time
“VPdb” - Enter valve control deadband
“VFAL” - Enter valve fail detect time
Velocity mode: “VUdt” - Enter valve update time
“VOPt” - Enter valve open time
“VCLt” - Enter valve close time
“VONt” - Enter valve control deadband
(minimum on time)
HIDDEN FUNCTION MODE *
The hidden function mode is accessible from the normal operating mode. The
four functions in this mode may be locked-out individually in configuration 3
parameter lock-out section.
“SPSL” - Select Local/Remote Setpoint
“trnF” - Transfer between automatic (PID) control
and manual control
“tUNE” - Invoke/cancel PID Auto-tune
“ALrS” - Reset latched alarms
PROTECTED PARAMETERS MODE *
The protected parameters mode is enabled when program disable is active.
This mode prevents access to the configuration modes without the proper access
code number. Only the parameters that are selected in the configuration 3
parameter lock-out section can be accessed.
“ProP” - Enter Proportional band
“Intt” - Enter integral time
“dErt” - Enter derivative time
“rtio” - Enter remote setpoint ratio value
“bIAS” - Enter remote setpoint bias value
“SP-2” - Enter internal cascade, secondary setpoint
“Pb-2” - Enter internal cascade, secondary
proportional band
“It-2” - Enter internal cascade, secondary
integral time
“dt-2” - Enter internal cascade, secondary
derivative time
“AL-1” - Enter value for alarm #1
“AL-2” - Enter value for alarm #2
“CodE” - Enter access value to unprotected
parameters & configuration parameters
*These parameters may not appear due to option configuration or other
programming.
ACCESSORY - EXTERNAL SSR POWER UNIT
The external SSR Power Unit is used with the Logic/SSR Drive Module
(OMD00003) to switch loads up to 240 VAC @ 45 amps, 25°C ambient.
The unit is operated by applying a low level DC control signal to the
isolated input. The unit features zero cross detection circuits which reduces
radiated RFI when switching load currents. With no contacts to wear out,
the SSR Power Unit provides virtually limitless operational life. The unit is
supplied with an integral heat sink for immediate installation.
ACCESSORY - CURRENT TRANSFORMER
The external Current Transformer is used when specifying TCUs
equipped with the Heater Current Monitor. The primary current rating is 50
amperes.

F
5811-717-767-6511
OUTPUT MODULES
TYPICAL CONNECTIONS
Relay:
Type: Form-C (Form-A with some models. See ordering information.)
Rating: 5 amps @ 120/240 VAC or 28 VDC (resistive load), 1/8 HP @ 120
VAC (inductive).
Life Expectancy: 100,000 cycles at maximum load rating.
(Decreasing load and/or increasing cycle time, increases life expectancy).
Logic/SSR Drive: Can drive multiple SSR Power Units.
Type: Non-isolated switched DC, 12 VDC typical
Drive: 45 mA maximum.
Triac:
Type: Isolated, Zero Crossing Detection
Rating:
Voltage: 120/240 VAC
Max. Load Current: 1 ampere @ 35°C
0.75 ampere @ 50°C
Min. Load Current: 10 mA
Off State Leakage Current: 7 mA max. @ 60 Hz
Operating Frequency: 20 to 400 Hz
Protection: Internal Transient Snubber, Fused
APPLICATION
Several TCU controllers are
employed to control the temperature of
a plastics extruder. Each TCU controls
a heating element and a cooling water
solenoid to maintain each extruder
zone at a desired temperature. The
heater current monitor of the TCU is
used for early detection of heater
element failure. The linear DC output
is used to retransmit the process
temperature to a control computer for
data logging purposes.

F
582 www.redlion.net
ORDERING INFORMATION
MODELS WITHOUT SECOND INPUT OPTIONS
HEATER CURRENT MONITOR MODELS (HCM)
NEMA 4X/P65
BEZEL
4 to 20 mA
ANALOG
OUTPUT
0 to 10 VDC
ANALOG
OUTPUT
ALARM
OUTPUTS
COOLING
OUTPUT RS485 COM PART NUMBER
115/230 VAC
NO NO NO NO NO NO TCU00000
NO NO NO 2 NO NO TCU00001
NO NO NO 1 YES NO TCU00002
NO YES NO 2 NO NO TCU01001
NO YES NO 2 NO YES TCU01004
NO YES NO 1 YES YES TCU01005
YES NO NO NO NO NO TCU10000
YES NO NO 2 NO NO TCU10001
YES NO NO 1 YES NO TCU10002
YES YES NO 2 NO NO TCU11001
YES YES NO 1 YES NO TCU11002
YES YES NO 2 NO YES TCU11004
YES YES NO 1 YES YES TCU11005
YES NO YES 2 NO NO TCU12001
YES NO YES 2 NO YES TCU12004
YES NO YES 1YES YES TCU12005
TCU11208NONO2NOYESYES
TCU10204YESNO2NONOYES
ALARM
OUTPUTS
0 to 10 VDC
ANALOG
OUTPUT
4 to 20 mA
ANALOG
OUTPUT
COOLING
OUTPUT PART NUMBERRS485 COM
NEMA 4X/IP65
BEZEL
These models have dual alarm outputs, or single alarm with cooling outputs, with shared common
terminals (Form A Type). As a result, these outputs should be fitted with the same type of output
module. The main output (OP1) may be fitted with any type of output module.
These models have dual alarm outputs, or single alarm with cooling outputs, with shared common terminals (Form A Type).
As a result, these outputs should be fitted with the same type of output module. The main output (OP1) may be fitted with
any type of output module.
SECOND ANALOG INPUT MODELS (ANA)
These models have dual alarm outputs, or single alarm with cooling outputs, with shared
common terminals (Form A Type). As a result, these outputs should be fitted with the same type
of output module. The main output (OP1) may be fitted with any type of output module.
NEMA 4X/IP65
BEZEL
4 to 20 mA
ANALOG
OUTPUT
0 to 10 VDC
ANALOG
OUTPUT
ALARM
OUTPUTS
COOLING
OUTPUT RS485 COM PART NUMBER
YES NO NO 2 NO YES TCU10104
YES YES NO 2 NO NO TCU11108
YES NO YES 2 NO NO TCU12108
COOLINGALARM0 to 10 VDC4 to 20 mA
MOTORIZED VALVE POSITIONER MODELS (MVP)
NEMA 4X/IP65
BEZEL
4 to 20 mA
ANALOG
OUTPUT
0 to 10 VDC
ANALOG
OUTPUT
ALARM
OUTPUTS
COOLING
OUTPUT RS485 COM PART NUMBER
YES NO NO 1 NO YES TCU10307
YES YES NO 1 NO NO TCU11306
YES NO YES 1 NO NO TCU12306
DESCRIPTION PART NUMBER
Relay Module OMD00000
Triac Module OMD00001
Logic/SSR Drive Module OMD00003
Three Phase DIN Rail Mount SSR
Single Phase 40 A DIN Rail Mount SSR
SSR Power Unit
RLY70000
RLY6A000
RLY60000
RLY50000
50:0.1 Ampere Current Transformer CT005001
40:0.1 Ampere Current Transformer CT004001
Note: Output Modules are NOT supplied with the controller. When specifying the
controller, be sure to purchase the appropriate output module for the Main Control
Output and if necessary, the alarm output(s), the cooling output, and valve positioner
outputs. The controller can be fitted with any combination of output modules.
The Logic/SSR Drive Module is a switched DC source, intended to drive the DC input
of an SSR power unit. It should never be connected to line voltage.
All output modules are packaged separately and must be installed by the user.
ACCESSORIES
Single Phase 25 A DIN Rail Mount SSR

F
5831-717-767-6511
SETPOINT PROGRAM CONTROLLER FOR TIME VS.
TEMPERATURE (RAMP/SOAK) AND SPECIAL BATCH/RECIPE
APPLICATIONS
ADVANCED PROGRAM PROFILING IN A 1/8 DIN PACKAGE
ON-LINE MONITORING AND CONTROL OF PROGRAM STATUS,
TIME, AND SETPOINT VALUE (Program Run, Pause, Stop,
Advance, Modify Time, & Setpoint Value)
AUTOMATIC PROGRAM DELAY FOR PROFILE CONFORMITY,
PLUS PROGRAM LINKING, REPEATING AND AUTO POWER-ON
FUNCTIONS FOR ENHANCED CAPABILITY
DUAL EVENT OUTPUTS FOR TIMED ACTIVATION OF PROCESS
EQUIPMENT SUCH AS STIRRERS, FANS, HEATERS, ETC. (Uses
Alarm Output Channels)
FOUR SETPOINT & PID PARAMETER SETS FOR QUICK RECALL
OF SETPOINTS AND/OR GAIN VALUES DURING BATCH OR
PROCESS CHANGEOVER
PROGRAMMABLE USER INPUT FOR CONTROLLER AND
SETPOINT PROGRAM CONTROL
100 MSEC SAMPLING PERIOD WITH 0.15% ACCURACY
ON DEMAND AUTO-TUNING OF PID CONTROL SETTINGS
DUAL LED DISPLAYS FOR SIMULTANEOUS INDICATION OF
TEMPERATURE AND SETPOINT OR TEMPERATURE AND
PROFILE STATUS
ACCEPTS ANY ONE OF 10 DIFFERENT TYPES OF SENSOR
INPUTS (Thermocouple or RTD)
FIELD REPLACEABLE AND INTERCHANGEABLE OUTPUT
MODULES (Relay, Logic/SSR drive, and Triac)
OPTIONAL DUAL ALARM OUTPUTS (Uses Output Modules)
OPTIONAL COOLING OUTPUT (Uses Output Module)
OPTIONAL LINEAR 4 to 20 mA or 0 to 10 VDC OUTPUT FOR
CONTROL OR TEMPERATURE RE-TRANSMISSION
OPTIONAL RS485 SERIAL COMMUNICATIONS INTERFACE
OPTIONAL NEMA 4X/IP65 SEALED FRONT BEZEL
DESCRIPTION
The TSC is a setpoint controller suitable for time vs. temperature, process
control applications. The TSC accepts signals from a variety of temperature
sensors (thermocouple and RTD elements), precisely displays the process
temperature, and provides an accurate output control signal (time proportional
or linear) to maintain a process at the desired control point. A comprehensive set
of easy to use steps allows the controller to satisfy various applications. The user
input can be programmed to perform a variety of controller functions.
Dual 4-digit displays allow viewing of the measured temperature value and
setpoint or temperature and profile status simultaneously. Front panel indicators
inform the operator of controller status and output states. Replaceable output
modules (Relay, logic/SSR drive or Triac) can be fitted to the main control output,
alarm output(s) or timed event output(s), and cooling output.
The TSC has been designed to simplify the set-up and operation of a controlled
setpoint profile program. The setpoint program is easily entered and controlled
through the front panel. Full display capabilities keep the operator informed of the
process temperature, profile status, output states, and setpoint value.
The controller can operate in the standard PID control mode for both heating
or cooling with on-demand auto-tune which establishes the PID gain set. The
PID gain set can be fine tuned by the operator at any time or may be locked from
further modification. The unit can be transferred to the manual control mode
providing the operator with direct control of the output.
The TSC features four programs or profile recipes, each with up to eight
ramp/soak segments, which can be easily stored and executed at any time.
Longer profiles can be achieved by linking one or more profiles together,
creating a single profile of up to 32 ramp/soak segments. Temperature profile
conformity is assured during either soak (hold) phases or both ramp and hold
phases by an adjustable error band parameter. The program repeat function
cycles the profile either continuously or a set number of times. Power-on options
automatically re-start, stop, or resume a running profile. The profile can be
controlled via the front panel buttons, the user input, or the optional serial
communications port.
Four control points, each having a setpoint and PID parameter set, are
available for instant front panel implementation during batch changeover, or
MODEL TSC - TEMPERATURE SETPOINT CONTROLLER
DIMENSIONS In inches (mm)
Note: Recommended minimum clearance (behind the panel) for mounting clip installation is 5.5" (140) H x 2.1" (53.4) W.
C
C
US LISTED
US LISTED
UL
R
IND. CONT. EQ.
51EB
PANEL CUT-OUT

F
584 www.redlion.net
DESCRIPTION (Cont’d)
other process conditions. A control point may have its PID gain set values
disabled when implementing the control point.
The optional RS485 multidrop serial communications interface provides the
capability of two-way communication between a TSC unit and other compatible
equipment such as a printer, a programmable controller, or a host computer. In
multipoint applications the address number of each unit on the line can be
programmed from 0-99. Up to thirty-two units can be installed on a single pair
of wires. The Setpoint value, % Output Power, Setpoint Ramp Rate, etc. can be
interrogated or changed by sending the proper command code via serial
communications. Alarm output(s) may also be reset via the serial
communications interface option.
Optional alarm output(s) may be configured to operate as a timed event
output or as a standard alarm output. As an alarm output it may be configured to
activate according to a variety of actions (Absolute HI or LO, Deviation HI or
LO, or Band IN or OUT) with adjustable hysteresis. Also, a standby feature
suppresses the output(s) on power-up until the temperature stabilizes outside the
alarm region. Timed event output(s) allow the controller to activate other
equipment while a programmed profile is running. Each profile can define up to
16 event states (phases), for each output(s).
An optional secondary output is available for processes that require cooling
which provides increased control accuracy and response.
The optional linear 4 to 20 mA or 0 to 10 VDC output signal is available to
interface with final actuators, chart recorders, indicators, or other controllers. The
output signal can be digitally scaled and selected to transmit one of the following:
% Output Power
Measurement Value
Measurement Value Deviation
Setpoint Value
An optional NEMA 4X/IP65 rated bezel is available for washdown and/or
dirty environments, when properly installed. Modern surface-mount technology,
extensive testing, plus high immunity to noise interference, makes the controller
extremely reliable in industrial environments.
SAFETY SUMMARY
All safety related regulations, local codes and instructions that appear in the
manual or on equipment must be observed to ensure personal safety and to
prevent damage to either the instrument or equipment connected to it. If
equipment is used in a manner not specified by the manufacturer, the protection
provided by the equipment may be impaired.
Do not use the TSC to directly command motors, valves, or other actuators
not equipped with safeguards. To do so, can be potentially harmful to persons or
equipment in the event of a fault to the unit. An independent and redundant
temperature limit indicator with alarm outputs is strongly recommended. Red
Lion Controls model IMT (thermocouple) or model IMR (RTD) units may be
used for this purpose. The indicators should have input sensors and AC power
feeds independent from other equipment.
SPECIFICATIONS
1. DISPLAY: Dual 4-digit
Upper Temperature Display: 0.4" (10.2 mm) Red LED
Lower Auxiliary Display: 0.3" (7.6 mm) Green LED
Display Messages:
“OLOL” - Appears when measurement exceeds + sensor range.
“ULUL” - Appears when measurement exceeds - sensor range.
“OPEN” - Appears when open sensor is detected.
“SHrt” - Appears when shorted sensor is detected (RTD only).
“....” - Appears when display value exceeds + display range.
“-...” - Appears when display value exceeds - display range.
2. POWER: 115/230 VAC (+10%, -15%) no observable line variation effect,
48-62 Hz, 10 VA, switch selectable.
3. ANNUNCIATORS:
6 LED Backlight Status Indicators:
%PW - Lower auxiliary display shows power output in (%).
PGM - Lower auxiliary display shows profile status or profile
time remaining.
MAN - Controller is in manual mode.
OP1 - Main control output is active.
AL1 - Alarm #1 is active.
AL2 - Alarm #2 is active (for Dual Alarm Option)
OP2 - Cooling output is active (for Cooling Option).
4. CONTROLS: Four front panel push buttons for setup and modification of
controller functions and one external input.
5. SETPOINT PROFILE:
Profiles: 4
Segments Per Profile: 8 ramp/hold segments (linkable to 32 segments).
Ramp Rate: 0.1 to 999.9 degrees/minute or no ramp.
Hold Time: Off or from 0.1 to 999.9 minutes, can be extended to 500 hours
by linking.
Error Band Conformity: Off or from 1 to 9999 degrees deviation, + value
for hold phases, - value for both ramp and hold phases.
Power-On Modes: Stop, auto-start, or profile resume.
Start Mode: Ramps from process temperature.
Program Auto Cycle: 1 to 249, or continuous.
Event Outputs: 2, time activated with profile [uses Alarm output(s)].
Control: Front panel buttons, user input, or RS485 communications.
6. CONTROL POINTS:
Setpoints: 4
PID gain sets: 4
Control: Front panel buttons or user input.
7. SENSOR INPUT:
Sample Period: 100 msec
Response Time: 300 msec (to within 99% of final value w/step input;
typically, response is limited to response time of probe).
Failed Sensor Response:
Main Control Output(s): Programmable preset output.
Display: “OPEN”.
Alarms: Upscale drive.
DC Linear: Programmable preset output.
Normal Mode Rejection: 40 db @ 50/60 Hz (improves with increased
digital filtering).
Common Mode Rejection: 100 db, DC to 50/60 Hz.
Protection: Input overload voltage; 240 VAC @ 30 sec max.
8. THERMOCOUPLE:
Types: T, E, J, K, R, S, B, N or Linear mV.
Input Impedance: 20 MΩ, all types.
Lead Resistance Effect: 20 μV/350 Ω.
Cold Junction Compensation: Less than ±1°C error over 0-50°C ambient
temperature range. Disabled for linear mV type.
Resolution: 1°C/F all types, or 0.1°C/F for T, E, J, K, and N only.
9. RTD: 2, 3 or 4 wire, 100 Ωplatinum, alpha = 0.00385 (DIN 43760), alpha =
0.003916
Excitation: 0.175 mA
Resolution: 1 or 0.1 degree
Lead Resistance: 7 Ωmax.
10. RANGE AND ACCURACY:
Errors include NIST conformity and A/D conversion errors at 23°C after 20
minutes warm-up. Thermocouple errors include cold junction effect. Errors
are expressed as ±(% of reading) and ±3/4 LSD unless otherwise noted.
11. OUTPUT MODULES [Optional] (For All Output Channels):
Relay:
Type: Form-C (Form-A with RS485 option)
Rating: 5 Amps @ 120/240 VAC or 28 VDC (resistive load), 1/8 HP @
120 VAC (inductive load).
Life Expectancy: 100,000 cycles at max. rating.(Decreasing load and/or
increasing cycle time, increases life expectancy).
Logic/SSR Drive: Can drive multiple SSR Power Units.
Type: Non-isolated switched DC, 12 VDC typical.
Drive: 45 mA max.
Triac:
Type: Isolated, Zero Crossing Detection.
Ratings:
Voltage: 120/240 VAC
Max Load Current: 1 AMP @ 35°C
0.75 AMP @ 50°C
Min Load Current: 10 mA
Off State Leakage Current: 7 mA max. @ 60 Hz
Operating Frequency: 20 to 500 Hz
Protection: Internal Transient Snubber, Fused.
TC TYPE RANGE ACCURACY WIRE COLOR
(ANSI)
T-200 to +400°C
-328 to +752°F
0.20% + 1.5°C
0.20% + 2.7°F blue
E-200 to 750°C
-328 to +1382°F
0.20% + 1.5°C
0.20% + 2.7°F violet
J-200 to +760°C
-328 to +1400°F
0.15% + 1.5°C
0.15% + 2.7°F white
K-200 to +1250°C
-328 to +2282°F
0.20% + 1.5°C
0.20% + 2.7°F yellow
R0 to +1768°C
+32 to +3214°F
0.15% + 2.5°C
0.15% + 4.5°F black
S0 to +1768°C
+32 to +3214°F
0.15% + 2.5°C
0.15% + 4.5°F black
B+200 to +1820°C
+300 to +3300°F
0.15% + 2.5°C
0.15% + 4.5°F grey
N-200 to +1300°C
-328 to +2372°F
0.20% + 1.5°C
0.20% + 2.5°F orange
mV -5.00 to 56.00 0.15% + 1 LSD __
RTD
(385)
-200 to +600°C
-328 to +1100°F
0.10% + 0.5°C
0.10% + 0.9°F
__
RTD
(392)
-200 to +600°C
-328 to +1100°F
0.10% + 0.5°C
0.10% + 0.9°F
__
OHMS 1.0 to 320.0 0.15% + 1 LSD __

F
5851-717-767-6511
SPECIFICATIONS (Cont’d)
12. MAIN CONTROL OUTPUT (Heating or Cooling):
Control: PID or ON/OFF.
Output: Time proportioning or linear DC.
Hardware: Plug-in, replaceable output modules.
Cycle time: Programmable.
Auto-tune: When performed, sets proportional band, integral time, and
derivative time values.
Probe Break Action: Programmable.
13. COOLING OUTPUT (Optional):
Control: PID or ON/OFF.
Output: Time proportioning or linear DC
Hardware: Plug-in, replaceable output modules.
Cycle time: Programmable.
Proportional Gain Adjust: Programmable.
Heat/Cool DeadBand: Programmable.
14. LINEAR DC DRIVE (Optional): With digital scale and offset,
programmable deadband and update time.
4 to 20 mA:
Resolution: 1 part in 3500 typ.
Accuracy: ±(0.1% of reading + 25 μA).
Compliance: 10 V (500 Ωmax. loop impedance).
0 to 10 VDC:
Resolution: 1 part in 3500 typ.
Accuracy: ±(0.1% of reading + 35 mV).
Min. Load Resistance: 10 KΩ(1 mA max.)
Source: % output power, setpoint, deviation, or temperature.
(Available for heat or cool, but not both.)
15. ALARMS (Optional):
Hardware: Plug-in, replaceable output module.
Modes: Absolute high acting
Absolute low acting
Deviation high acting
Deviation low acting
Inside band acting
Outside band acting
Timed event output(s)
Reset Action: Programmable; automatic or latched.
Delay: Programmable; enable or disable.
Hysteresis: Programmable.
Probe Break Action: Upscale.
Annunciator: LED backlight for “AL1”, “AL2”, (Alarm #2 not available
with cooling output).
16. SERIAL COMMUNICATIONS (Optional):
Type: RS485 Multi-point, Balanced Interface.
Communication Format:
Baud Rate: Programmable from 300-9600.
Parity: Programmable for odd, even, or no parity.
Frame: 1 start bit, 7 data bits, 1 or no parity bit, 1 stop bit.
Unit Address: Programmable from 0-99, max. of 32 units per line.
Transmit Delay: 100 msec min., 200 msec max.
RS485 Common: Isolated from signal input common.
Auto Print Time: Off to 9999 seconds between print-outs.
17. USER INPUT: VIN max = 5.25 VDC, VIL = 0.85 VMAX; VIH = 2.0 VMIN,
Response time 100 msec max.
Functions:
Program Lock Print Request
Integral Action Lock Load Control Point
Auto/Manual Transfer Run/Hold Profile 1
Setpoint Ramp Select Run/Stop Profile 1
Reset Alarms
18. ENVIRONMENTAL CONDITIONS:
Operating Temperature: 0 to 50°C
Storage Temperature: -40 to 80°C
Operating and Storage Humidity: 85% max. (non-condensing) from 0°C to
50°C.
Span Drift: ≤ 100 ppm/°C
Zero Drift: ≤ 1 μV/°C
Altitude: Up to 2000 meters
19. CERTIFICATIONS AND COMPLIANCES:
SAFETY
UL Listed, File # E137808, UL508, CSA C22.2 No. 14-M95
LISTED by Und. Lab. Inc. to U.S. and Canadian safety standards
UL Recognized Component, File # E156876, UL873, CSA C22.2 No. 24
Recognized to U.S. and Canadian requirements under the Component
Recognition Program of Underwriters Laboratories, Inc.
Type 2 or 4X Enclosure rating (Face only), UL50
IECEE CB Scheme Test Certificate # UL1239-156876/USA,
CB Scheme Test Report # 96ME50279-070794
Issued by Underwriters Laboratories, Inc.
IEC 1010-1, EN 61010-1: Safety requirements for electrical equipment
for measurement, control, and laboratory use, Part 1.
IP65 Enclosure rating (Face only), IEC 529
ELECTROMAGNETIC COMPATIBILITY
Notes:
1. Self-recoverable loss of performance during EMI disturbance at 10 V/m:
Analog output signal may deviate during EMI disturbance.
For operation without loss of performance:
Install 1 ferrite core 1 turn, RLC #FCOR0000 or equivalent, to power
lines at unit.
or
Install power line filter, RLC #LFIL0000 or equivalent.
2. Self-recoverable loss of performance during EMI disturbance at 10 Vrms:
Analog output signal may deviate during EMI disturbance.
For operation without loss of performance:
a. Install 1 ferrite core 1 turn, RLC #FCOR0000 or equivalent, to
power lines at unit.
or
Install power line filter, RLC #LFIL0000 or equivalent.
b. Install 1 ferrite core 1 turn, RLC #FCOR0000 or equivalent, to
analog output cable at unit.
Refer to the EMC Installation Guidelines section of the manual for additional
information.
20. CONNECTION: Jaw-type terminal block.
21. CONSTRUCTION:
Front Panel: Flame and scratch resistant tinted plastic.
Case: High impact black plastic. (Mounting collar included).
NEMA 4X/IP65 model only: Sealed bezel utilizing 2 captive mounting
screws (panel gasket included).This unit is rated for NEMA 4X/IP65
indoor use. Installation Category II, Pollution Degree 2.
22. WEIGHT: 1.3 lbs. (0.6 kgs)
BASIC OPERATION
The TSC controls the temperature profile of a system by measuring the
temperature via an input probe, compares the actual temperature to the setpoint
profile in progress, and calculates the new output power value by use of a
modified PID control algorithm. The unit controls the system with the new
output power value so the process temperature conforms to the programmed
profile. The PID control algorithm incorporates features which provide
minimum overshoot and excellent temperature control accuracy for a process.
FRONT PANEL FEATURES
In the normal display mode, the unit will display the process temperature in
the upper display. One of five other parameters may be selected for viewing in
the lower display:
Target Setpoint Profile Phase Time Remaining
% Output Power Temperature Symbol (F/C)
Profile Status
The program profile status display indicates the active profile number with
the current ramp or hold phase of the profile. The profile can be started, stopped,
advanced, etc. from the front panel when the profile status display is viewed, if
not locked from access.
The phase time remaining display, shows the time remaining in a ramp or
hold phase and, if not locked from access, may be changed on-line to effect
temporary changes to the program. Additionally, the target setpoint and %
output power (manual mode only) may also be changed on-line or locked from
operator access.
From the normal operating mode, parameters are selected by use of the PAR
button and modified by use of the UP and DOWN buttons. Parameters are then
entered by the PAR button, which advances the user to the next parameter.
Pressing the DSP button immediately returns the controller to the normal
operating mode from any parameter module. The controller configuration and
parameter settings are stored in an internal E2PROM device.
Power mains class A
Enclosure class AEN 55011RF interference
Emissions to EN 50081-2
150 KHz - 80 MHz
Level 3; 10 V/rms2
EN 61000-4-6RF conducted interference
Level 3; 2 Kv power
Level 4; 2 Kv I/OEN 61000-4-4Fast transients (burst)
80 MHz - 1 GHz
Level 3; 10 V/m1
EN 61000-4-3Electromagnetic RF fields
Level 3; 8 Kv air
Level 2; 4 Kv contactEN 61000-4-2Electrostatic discharge
Immunity to EN 50082-2

F
586 www.redlion.net
CONFIGURATION MODE
The configuration modules serve to provide the basic set-ups required by
the controller. It is divided into sections which group together related
programming steps, such as inputs, outputs, alarms, etc. Upon completion of
each section, the program returns to the configuration selection stage, which
allows the user to return to the normal display mode, or advance to a later
configuration stage.
Configuration 1, Inputs
“tYPE” - Select input probe type
“SCAL” - Select temperature scale
“dCPt” - Select temperature resolution
“FLtr” - Select degree of input filtering
“SPAN” - Enter input correction span (slope)
“SHFt” - Enter input correction shift (offset)
“SPLO” - Enter setpoint lower limit
“SPHI” - Enter setpoint higher limit
“SPrP” - Enter setpoint ramp rate
“InPt” - Select user input function
Configuration 2, Outputs
“CYCt” - Enter time proportioning cycle time
“OPAC” - Select control action
“OPLO” - Enter output power low limit
“OPHI” - Enter output power high limit
“OPFL” - Enter probe fail power preset
“CHYS” - Enter ON/OF control hysteresis
“tcod” - Select auto-tuning damping
“ANAS” - Select linear DC output assignment *
“ANLO” - Enter linear DC low scaling value *
“ANHI” - Enter linear DC high scaling value *
Configuration 3, Parameter lock-outs
“SP” - Select degree of setpoint access
“OP” - Select degree of power access
“P-CS” - Select degree of profile status
access
“P-tr” - Select degree of phase time remaining
access
“UdSP” - Enable temperature units display
“CodE” - Enter parameter access code
“PId” - Select degree of PID access
“AL” - Select degree of alarm access *
“ALrS” - Enable manual reset of alarms *
“CPAC” - Enable control point access
“PrAC” - Enable ramp/hold program access
“trnF” - Enable automatic/manual transfer
“tUNE” - Enable auto-tune invocation
Configuration 4, Alarms *
“Act 1” - Select operation mode of alarm #1
“rSt1” - Select reset mode of alarm #1
“Stb1” - Enable activation delay of alarm #1
“AL-1” - Enter value for alarm #1
“Act2” - Select operation mode of alarm #2
“rSt2” - Select reset mode of alarm #2
“Stb2” - Enable activation delay of alarm #2
“AL-2” - Enter value for alarm #2
“AHYS” - Enter hysteresis value for both alarms
Configuration 5,.Cooling *
“CYC2” - Enter cooling time proportioning cycle time
“GAN2” - Enter cooling relative gain
“db-2” - Enter heat/cool deadband or overlap
Configuration 6, Serial Communications *
“bAUd” - Select baud rate
“PArb” - Select parity bit
“Addr” - Enter unit address number
“Abrv” - Select abbreviated or full mnemonic
transmissions
“PrAt” - Enter automatic print rate
“PoPt” - Select parameters to be included
in print-out
Configuration 7, Control Points
“CSEt” - Select control point number for set-up 1, 2,
3, & 4
“SP-x” - Enter setpoint value for selected control
point
“PId” - Select if PID gain set to be loaded with
setpoint
“PB-x” - Enter proportional band for selected
control point *
“It-x” - Enter integral time for selected control
point *
“dt-x” - Enter derivative time for selected control
point *
Configuration 8, Profiles
“PSEt” - Select profile or event output for set-up 1,
2, 3, or 4
“PnCC” - Enter program-repeat cycle count for
selected profile
“PnLn” - Select link option for selected profile
“PnEb” - Enter error band for temperature
conformity for selected profile
“PnPC” - Enter power-down resume status for
selected profile
“Pnr1” - Enter ramp rate 1 for selected profile *
“PnL1” - Enter setpoint level 1 for selected profile *
“PnH1” - Enter hold time 1 for selected profile *
. .
. .
“Pnr8” - Enter ramp rate 8 for selected profile *
“PnL8” - Enter setpoint level 8 for selected profile *
“PnH8” - Enter hold time 8 for selected profile *
“Pn 1” - Select event outputs at phase 1 for
selected profile *
. .
. .
“Pn16” - Select event outputs at phase 16 for
selected profile *
Configuration 9, Factory Service Operations
(Detailed in the operator’s manual)
*These parameters may not appear due to option configuration or other
programming
HARDWARE FEATURES
The fast 100 msec input sampling rate
provides quick controller response to a
process disturbance for excellent temperature
control. Measurement accuracy of 0.15%
provides closer process control conforming to
the desired control setpoint value.
The unit accepts a variety of both
thermocouple or RTD temperature probes.
The A.C. input power is switch selectable,
allowing the unit to operate from either 115
VAC or 230 VAC. Since the controller is
serviceable from the front of the panel, the
output modules may be easily changed or
replaced without disturbing the wiring behind
the panel and NO re-programming is required.
The standard model simply requires pressing a
latch to remove the unit. The NEMA 4X/IP65
rated model utilizes two panel securing screws
and a neoprene gasket to guarantee a water
tight seal, when properly installed.
Low-drift, highly stable circuit design ensures years of reliable and accurate
temperature control. The recommended two year re-calibration interval is
easily accomplished via the programming menu.
SETPOINT FEATURES
The controller’s setpoint can be protected from out of range values, by
programming the setpoint range limit values. Additionally, safeguards from
inadvertent data entry can also be programmed.
The setpoint ramp feature ramps the setpoint value at start-up or any time a
setpoint change is made, at a user programmable rate, independent of a
programmed profile. This feature reduces thermal shock to the process and
also helps to minimize temperature overshoot.
The active setpoint, which can be a running profile, may also be transmitted
by the linear DC output for slave control loops.
Four control points are available which can be implemented at any time.
Each control point is programmed independently, with each having a setpoint
and a PID gain set value. With gain value changes, the output power control
signal will not “bump” resulting in a smooth control transition.
INPUT FEATURES
A programmable input filter can be used to stabilize readings from a process
with varying or oscillating temperature characteristics, helping to provide
better temperature control.
A programmable temperature shift and slope function can be used to
compensate for probe errors or to have multiple TSC units indicate the same
nominal temperature.
A programmable User Input is available to control a variety of controller
functions, such as profile control, auto/manual transfer, serial communication
print requests, etc.
NEMA 4X/IP65 BEZEL

F
5871-717-767-6511
OUTPUT FEATURES
Programmable output power limits provide protection for processes where
too much power can cause damage. Automatic sensor probe break detection, for
fail-safe operation, causes the controller to default to a programmed output
power (upscale or downscale burnout). With adjustable time proportioning-
cycle time and programmable D.C. Linear output, the controller can satisfy a
wide variety of output requirements.
During execution of a profile, two independent, timed event outputs are
available to control or signal other equipment. The event outputs use the alarm
channels.
The RS485 Communication option allows the user to access various
controller parameters such as the setpoint, % output power, % proportional
band, etc. The controller may be setup to transmit various parameters at a
programmable automatic print rate.
AUTO-TUNE
The model TSC has an auto-tune feature which, on demand, automatically
determines the PID control parameters for a particular thermal process. After
completion of auto-tune, the PID parameters are automatically optimized for
that process and loaded into nonvolatile memory. The operator may view and
modify the parameters as desired.
Auto-tune may be invoked at start-up, while ramping, or at setpoint,
depending on the process requirements. A programmable auto-tune damping
factor produces various levels of process control and response characteristics.
PROFILE PROGRAMMING
Profiles are programmed independently of each other and are separate from
the configuration of other controller parameters. Each profile has parameters for
error band (profile conformity), linking, auto-start and program repeat cycles.
Profiles may be altered during execution, so changes take effect as the
programmed profile advances.
CONTROLLER PROGRAMMING
The model TSC has been designed to reduce the operator interaction with the
controller while still maintaining a high degree of control accuracy and user
flexibility. Front panel program disable allows all of the controller’s set-ups to be
locked-out from further operator intervention after the initial parameter set-up.
The programming of the controller is divided into four sections:
Hidden Mode
Protected Mode
Unprotected Mode
Configuration Mode
These four programming modes allow the controller to adapt to any required
user-interface level.
UNPROTECTED PARAMETER MODE
The unprotected mode is accessible when program disable is inactive or when
the proper access code number from the protected mode is entered. Only from
this mode can the configuration modes be accessed.
“SP” - Enter setpoint *
“OPOF” - Enter %output power offset *
“OP” - Enter output power *
“ProP” - Enter proportional band
“Intt” - Enter integral time *
“dErt” - Enter derivative time *
“AL-1” - Enter value for alarm #1 *
“AL-2” - Enter value for alarm #2 *
“CNFP” - Select basic configuration module
“End” - Return to normal display mode
PROTECTED PARAMETER MODE *
The protected mode is accessible when program disable is active, also this
mode prevents access to the configuration modes without the proper access code
number. Only the parameters that are selected in the configuration 3 parameter
lock-outs section can be accessed.
“ProP” - Enter proportional band
“Intt” - Enter integral time
“dErt” - Enter derivative time
“AL-1” - Enter value for alarm #1
“AL-2” - Enter value for alarm #2
“CodE” - Enter access value to unprotected mode
“End” - Return to normal display mode
HIDDEN FUNCTIONS MODE *
The hidden mode is accessible from the normal operating mode by holding
the PAR button for 3 seconds. The five functions in this mode may be locked-
out individually in configuration 3 parameter lock-outs section.
“ CP” - Load control point x
“Prun” - Control ramp/hold profile state
“trnF” - Transfer between automatic (PID) control
and Manual control
“tUNE” - Invoke/Cancel PID auto-tune
“ALrS” - Reset latched alarms
OUTPUT VARIATIONS WITHOUT RS485 OPTION
The Dual Alarm or the Cooling with Alarm output, without the RS485 option,
has independent outputs. Therefore, the cooling output and/or alarm output(s)
can be installed with any combination of output modules.
OUTPUT VARIATIONS WITH RS485 OPTION
The Dual Alarm or the Cooling with Alarm output, with RS485 option, does
not have independent outputs. In this case, the cooling output and/or alarm
output(s) must have the same type of output modules installed since they share
the common terminal.
*These parameters may not appear due to option configuration or other
programming

F
588 www.redlion.net
OUTPUT MODULES
Units equipped with RS485 option must have the Dual Alarm or Cooling
w/alarm options fitted with the same type of output modules. The controller’s
main output (OP1) can be fitted with any output module. Output modules are
shipped separately and must be installed by the user.
TYPICAL CONNECTIONS
Relay:
Type: Form -C (Form-A with RS485 option only)
Rating: 5 Amps @ 120/240 VAC or 28 VDC (resistive load), 1/8 HP @ 120
VAC (inductive).
Life Expectancy:100,000 cycles at maximum load rating.
(Decreasing load and/or increasing cycle time, increases life expectancy).
Logic/SSR Drive: can drive multiple SSR Power Units.
Type: Non-isolated switched DC, 12 VDC typical.
Drive: 45 mA max.
Triac:
Type: Isolated, Zero Crossing Detection.
Rating:
Voltage: 120/240 VAC.
Max. Load Current: 1 Amp @ 35°C
0.75 Amp @ 50°C
Min. Load Current: 10 mA
Off State Leakage Current: 7 mA max. @ 60 Hz
Operating Frequency: 20 to 500 Hz.
Protection: Internal Transient Snubber, Fused.
APPLICATION
TSC GLASS TEMPERING APPLICATION
A manufacturer of glass items needs to
anneal (temper) their products to reduce the
brittleness of the glass structure. The tempering
process requires the glass to be heated and
subsequently cooled at a controlled rate to
change the structure of the glass. Different
tempering profiles are required for different
types of glass products.
A TSC is employed to control the
temperature profile of the annealing oven.
Four different temperature profiles are stored in
the controller. The 4 to 20 mA analog output
option is utilized to cool the annealing oven
during the cool down ramp phases. An event
output is used to quickly cool the oven at the
end of the batch run (alarm 1). Alarm 2 is used
to signal the operator whenever the
temperature is outside the prescribed program
profile.
Note: Units equipped with the RS485 option
have different terminal designators. See
“Output Variations with or without the
RS485 Option”.
The programming for this profile is as follows:
Parameter Value Description
“P1r1” 5.0 Ramp from ambient temp. during heat phase at
5.0°/min.
“P1L1” 300 Target setpoint level 300°
“P1H1” 40.0 Heat at 300° for 40.0 minutes
“P1r2” 3.0 Ramp down 3.0°/min. during cooling phase
“P1L2” 150 Target Setpoint is 150°
“P1H2” 0.0 Do not hold at 150° (used as “phantom” hold time
for triggering event output for auxiliary cooling)
“P1r3” -0.1 End Program
“P1 1” 1F2F Turn off output 1 (output 2 is alarm)
“P1 2” 1F2F Keep off output 1
“P1 3” 1F2F Keep off output 1
“P1 4” 1N2F Turn on output 1 for Auxiliary Exhaust Fan

F
5891-717-767-6511
RLY6
ORDERING INFORMATION
Note: Output Modules are NOT supplied with the controller. When specifying the controller, be sure to purchase the
appropriate output module for the Main Control Output and if necessary, the alarm output(s) and cooling output.
The controller can be fitted with any combination of output modules that do not have the RS485 option.
The Logic/SSR Drive Module is a switched DC source, intended to drive the DC input of an SSR power unit. It
should never be connected to a line voltage.
All modules are shipped separately and must be installed by the user.
MODEL NO. DESCRIPTION NEMA 4X/IP65
BEZEL
4 to 20 mA
ANALOG OUTPUT
0 to 10 VDC
ANALOG OUTPUT ALARM OUTPUTS COOLING OUTPUT RS485 COM PART NUMBER
TSC
Temperature
Setpoint
Controller
NO YES NO 2 NO NO TSC01001
YES YES NO 2 NO NO TSC11001
YES YES NO 1 YES NO TSC11002
YES YES NO 2 NO YES TSC11004
YES YES NO 1 YES YES TSC11005
YES NO YES 2 NO YES TSC12004
YES NO YES 1YES YES TSC12005
Relay Module OMD00000
Triac Module OMD00001
Logic/SSR Drive Module OMD00003
PMK5 Panel Mount Adapter Kit (1/4 DIN to 1/8 DIN) PMK50000
RLY
SSR Power Unit RLY50000
Single Phase 40 A DIN Rail Mount Solid State Relay
Single Phase 25 A DIN Rail Mount Solid State Relay
RLY6A000
RLY60000
These models have dual alarm outputs, or single alarm with cooling outputs, with shared common terminals (Form A Type). As a result, these outputs should
be fitted with the same type of output module. The main output (OP1) may be fitted with any type of output module.
Three Phase DIN Rail Mount Solid State Relay RLY70000

F
590 www.redlion.net
UL Recognized Component,
File #E156876
MODEL P16 - 1/16 DIN PROCESS CONTROLLER
This is a brief overview of the P16. For complete specifications and programming information, see the
T16/P16 Temperature/Process Controller Bulletin starting on page 541.
zPID CONTROL WITH REDUCED OVERSHOOT
zACCEPTS 0-10 V AND 0/4-20 mA SIGNALS
zON DEMAND AUTO-TUNING OF PID SETTINGS
zDC ANALOG OUTPUT (OPTIONAL)
zUSER PROGRAMMABLE FUNCTION BUTTON
zPC OR FRONT PANEL PROGRAMMING
zPC CONFIGURABLE WITH TP16KIT
INPUT SPECIFICATIONS
1. SENSOR INPUT:
Sample Period: 100 msec (10 Hz rate)
Step Response Time: 300 msec typical, 400 msec max to within 99% of
final value with step input.
Failed Sensor Response:
Main Control Output(s): Programmable preset output
Display: “OPEN”
Alarms: Upscale drive
Analog Output: Upscale drive when assigned to retransmitted input.
Normal Mode Rejection: >40 dB @ 50/60 Hz
Common Mode Rejection: >120 dB, DC to 60 Hz
Overvoltage Protection: 120 VAC @ 15 sec max
4. SIGNAL INPUT: (P16 only)
* Accuracies are expressed as ± percentages over 0 to 50 °C ambient range
after 20 minute warm-up.
0.30 % of
reading
+0.04mA
0.30 % of
reading
+0.03V
MAX
CONTINUOUS
OVERLOAD
10 µA100 mA
10 Ω
20 mA DC
(-2 to 22)
10 mV50 V
1 MΩ
10 VDC
(-1 to 11)
RESOLUTIONIMPEDANCEACCURACY *
INPUT
RANGE

F
5911-717-767-6511
PID CONTROL WITH REDUCED OVERSHOOT
ACCEPTS 0 to 10 VDC or 0/4 to 20 mA DC INPUTS
OPTIONAL TWO LINEAR DC OUTPUTS (0 to 10 V, 0/4 to 20 mA)
OPTIONAL DUAL ALARM OUTPUTS
OPTIONAL REMOTE SETPOINT INPUT (0/4 to 20 mA)
OPTIONAL RS485 SERIAL COMMUNICATIONS
SECOND SETPOINT SETTING
SETPOINT RAMPING FOR PROCESS STARTUP
PROGRAMMABLE USER INPUT (Digital) FOR ADDED FLEXIBILITY
PARAMETER SECURITY VIA PROGRAMMABLE LOCKOUTS
MANUAL/AUTOMATIC CONTROL MODES
ON DEMAND AUTO-TUNING OF PID CONTROL SETTINGS
DUAL LED DISPLAYS FOR SIMULTANEOUS INDICATION OF
PROCESS AND SETPOINT
STATUS INDICATORS FOR OUTPUTS AND CONTROL MODES
PC SOFTWARE AVAILABLE FOR CONTROLLER CONFIGURATION
NEMA 4X/IP65 BEZEL
DESCRIPTION
The P48 Controller accepts either a 0 to 10 VDC or a 0/4 to 20 mA DC signal,
precisely displays the input process signal according to the programmable
scaling points, and provides an accurate output control signal (time proportional
or linear DC) to maintain the process at the desired control point. The
controller’s comprehensive yet simple programming allows it to meet a wide
variety of application requirements.
In the PID control mode the controller operates with on-demand auto-tune,
which will establish the tuning constants. The PID tuning constants may be fine-
tuned by the operator at any time and then locked out from further modification.
The controller employs a unique overshoot suppression feature, which allows
the quickest response without excessive overshoot. The unit can be transferred
to operate in the manual mode, providing the operator with direct control of the
output. The controller may also operate in the ON/OFF control mode with
adjustable hysteresis. a second setpoint is available to allow quick selection of
a different setpoint setting.
Dual 4-digit displays allow viewing of the process and setpoint
simultaneously. Front panel indicators inform the operator of the controller and
output status. On some models, the main control output and the alarm outputs
are field replaceable.
Optional alarm(s) can be configured to activate according to a variety of
actions (Absolute HI or LO, Deviation HI or LO, and Band IN or OUT) with
adjustable hysteresis. A standby feature suppresses the alarm during power-up
until the process stabilizes outside the alarm region. The second alarm can be
configured as a secondary PID output (heat/cool applications).
Optional Main Linear DC output (10 V or 20 mA) can be used for control or
process re-transmission purposes. Programmable output update time reduces
valve or actuator activity. The output range can be scaled independent of the
input range.
Optional Second Linear DC output (10 V or 20 mA) provides an independent
process re-transmission, while the main Linear DC output is being used for
control. The output range can be scaled independent of the input range.
Optional Remote Setpoint input (0/4 to 20 mA) allows for cascade control
loops; and allows for remotely driven setpoint signal from computers or other
similar equipment. Straightforward end point scaling with independent filtering
and local/remote transfer option expand the controller’s flexibility.
The optional RS485 serial communication interface provides two-way
communication between a P48 and other compatible equipment such as a printer,
PLC, HMI, or a host computer. In multipoint applications (up to thirty-two), the
address number of each P48 on the line can be programmed separately from 0 to
99. Data from the P48 can be interrogated or changed, and alarm output(s) may
be reset by sending the proper command code via serial communications. PC
software, SFCRM, allows for easy configuration of controller parameters. These
settings can be saved to disk for later use or used for multi-controller down
loading. On-line help is provided within the software.
The unit is constructed of a lightweight, high impact plastic case with a tinted
front panel. The front panel meets NEMA 4X/IP65 specifications when properly
installed. Multiple units can be stacked horizontally or vertically. Modern surface-
mount technology, extensive testing, plus high immunity to noise interference
makes the controller extremely reliable in industrial environments.
MODEL P48 - 1/16 DIN PROCESS CONTROLLER
DIMENSIONS In inches (mm) PANEL CUT-OUT
CAUTION: Risk of Danger.
Read complete instructions prior to
installation and operation of the unit.
CAUTION: Risk of electric shock.
UL Recognized Component,
File # E156876

F
592 www.redlion.net
SAFETY SUMMARY
All safety related regulations, local codes and instructions that appear in the
manual or on equipment must be observed to ensure personal safety and to
prevent damage to either the instrument or equipment connected to it. If
equipment is used in a manner not specified by the manufacturer, the protection
provided by the equipment may be impaired.
Do not use the P48 to directly command motors, valves, or other actuators
not equipped with safeguards. To do so can be potentially harmful to persons or
equipment in the event of a fault to the controller. An independent and
redundant process limit indicator with alarm outputs is strongly recommended.
SPECIFICATIONS
1. DISPLAY: Dual 4-digit
Upper Process Display: 0.4" (10.2 mm) high red LED
Lower Auxiliary Display: 0.3" (7.6 mm) high green LED
Display Messages:
“OLOL” - Appears when measurement exceeds + input range.
“ULUL” - Appears when measurement exceeds - input range.
“SENS” - Appears when measurement exceeds controller limits.
“...” - Appears when display values exceed + display range.
“-..” - Appears when display values exceed - display range.
LED Status Annunciators:
%P - Lower auxiliary display shows power output in (%).
MN - Flashing: Controller is in manual mode.
On: Local Setpoint (Remote Setpoint option)
Off: Remote Setpoint
DV - Lower auxiliary display shows deviation (error) from
setpoint.
O1 - Main control output is active.
A1 - Alarm #1 is active (for A1 option).
A2 - Alarm #2 is active OR
- Secondary output (02) is active.
2. POWER:
AC Versions: 85 VAC min. to 250 VAC max., 50 to 60 Hz, 8 VA max.
DC Versions:
DC Power: 18 to 36 VDC; 7 W
AC Power: 24 VAC ±10%; 50 to 60 Hz, 9 VA
3. CONTROLS: Four front panel push buttons for modification and setup of
controller functions and one external user input for parameter lockout or
other functions.
4. MEMORY: Nonvolatile E2 PROM retains all programmable parameters
and values.
5. RANGE AND ACCURACY:
* Accuracies are expressed as ± percentages after 20 minutes warm-up. The
controller’s accuracy is specified in two ways: accuracy over an 18 to
28°C range at 10 to 75% RH environment; and accuracy over a 0 to 50°C
range at 0 to 85% RH (non-condensing) environment. Accuracy over the
wide sensor range reflects the coefficient of the internal circuitry.
6. MAIN SIGNAL INPUT:
Sample Period: 100 msec
Response Time: Less than 300 msec typ., 400 msec max. (to within 99% of
final value w/step input; typically, response is limited to response time of
sensor)
Normal Mode Rejection: 40 dB @ 50/60 Hz (improves with increased
digital filtering.)
Common Mode Rejection: Greater than 120 dB, DC to 60 Hz
Protection: Input overload 120 VAC max. for 15 sec. max.
7. USER INPUT: Internally pulled up to +5 VDC (1 MΩ).
VIN MAX = 5.25 VDC; VIL = 0.85 V max.; VIH = 3.65 V min.;
IOFF = 1μA max.
Response Time: 120 msec max.
Functions:
8. CONTROL AND ALARM OUTPUTS:
Relay outputs with Form A contacts:
Contact Rating: 3 A @ 250 VAC or 30 VDC (resistive load)
1/10 HP @ 120 VAC (inductive load)
Life Expectancy: 100,000 cycles at max. load rating.
(Decreasing load and/or increasing cycle time, increases life
expectancy.)
9. MAIN CONTROL:
Control: PID or ON/OFF
Output: Time proportioning or Linear DC
Cycle time: Programmable
Auto-tune: When selected, sets proportional band, integral time, and
derivative time values.
10. ALARMS: 1 or 2 alarms (optional)
Modes:
Reset Action: Programmable; automatic or latched
Standby Mode: Programmable; enable or disable
Hysteresis: Programmable
Annunciator: LED backlight for “A1”, “A2”
11. SECONDARY OUTPUT: Software selectable (overrides alarm 2)
Control: PID or ON/OFF
Output: Time Proportioning
Cycle time: Programmable
Proportional Gain Adjust: Programmable
Deadband /Overlap: Programmable
12. MAIN AND SECOND LINEAR DC OUTPUT: (optional)
Main: Control or re-transmission, programmable update rate from 0.1 sec to
250 sec
Second: Re-transmission only, fixed update rate of 0.1 sec
* Accuracies are expressed as ± percentages after 20 minutes warm-up. Output
accuracy is specified in two ways: Accuracy over an 18 to 28°C range at 10
to 75% RH environment; and accuracy over a 0 to 50°C range at 0 to 85%
RH (non-condensing) environment. Accuracy over the wide sensor range
reflects the coeffecient of the internal circuitry.
** Outputs are independently jumper selectable for either 10 V or 20 mA. The
output range may be field calibrated to yield approximately 10% overrange
and a small underrange (negative) signal.
13. REMOTE SETPOINT INPUT: (optional)
Input type: 0/4 to 20 mA
Input Resistance: 10Ω
Overrange: -5% to 105%
Overload: 100 mA (continuous)
Scale Range: -999 to 9999
Resolution: 1 part in 10,000.
Accuracy:
At 25°°C: ±(0.1 % of full scale +½LSD)
Over 0 to 50°°C range: ±(0.2% of full scale +½LSD)
Reading Rate: 10/sec.
Setpoint Filtering: Programmable Digital
Setpoint Ramping: Programmable, 1 to 9999 units/minute.
14. SERIAL COMMUNICATIONS: (optional)
Type: RS485 multipoint, balanced interface
Baud Rate: 300 to 9600
Data Format: 7O1, 7E1, 7N2, 8N1
Node Address: 0 to 99, max of 32 units per line
Transmit Delay: 2 to 100 msec or 100 to 200 msec
Data Encoding: ASCII
Isolation w.r.t Main Input Common: 500 Vrms for 1 min. (50 V working)
Not isolated w.r.t. Remote Setpoint or Analog Output common
Note: RS485 and the Analog Output commons are not internally isolated
within the controller. The terminating equipment of these outputs must not
share the same common (ie. earth ground).
15. ENVIRONMENTAL CONDITIONS:
Operating Range: 0 to 50°C
Storage Range: -40 to 80°C
Operating and Storage Humidity:
85% max. relative humidity (non-condensing) from 0°C to 50°C.
Vibration According to IEC 68-2-6: Operational 5 to 150 Hz, in X, Y, Z
direction for 1.5 hours, 2g’s.
Shock According to IEC 68-2-27: Operational 20 g, 11 msec in 3 directions.
Altitude: Up to 2000 meters
16. ISOLATION BREAKDOWN RATINGS:
AC line with respect to all Inputs and outputs: 250 V working (2300 V for
1 minute).
Main input with respect to Analog Outputs and Remote Setpoint Input:
50 V working (2300 V for 1 minute).
OUTPUT **
RANGE
ACCURACY *
(18 to 28°C)
ACCURACY *
(0 to 50°C) COMPLIANCE RESOLUTION
0 to 10 V 0.10% of FS
+ 1/2 LSD
0.30% of FS
+ 1/2 LSD 10k ohm min. 1/3500
0 to 20 mA 0.10% of FS
+ 1/2 LSD
0.30% of FS
+ 1/2 LSD 500 ohm max. 1/3500
4 to 20 mA 0.10% of FS
+ 1/2 LSD
0.30% of FS
+ 1/2 LSD 500 ohm max. 1/2800
INPUT
RANGE
ACCURACY *
(0 to 50°C) IMPEDANCE RESOLUTION
10 VDC
(-1 to 11)
0.30% of
reading
+0.03 V
1 M ohm 300 V 10 mV
20 mA DC
(-2 to 22)
0.30% of
reading
+0.04 mA
10 ohm 100 mA 10 µA
ACCURACY *
(18 to 28°C)
MAX
CONTINUOUS
OVERLOAD
0.10% of
reading
+0.02 V
0.10% of
reading
+0.03 mA
Program Lock Integral Action Lock
Auto/Manual Mode Select Setpoint Ramp Enable
Reset Alarms Setpoint 1/Setpoint 2 Select
Local/Remote Setpoint Select Serial block print
Absolute high acting Absolute low acting
Deviation high acting Deviation low acting
Inside band acting Outside band acting

F
5931-717-767-6511
All other inputs and outputs with respect to relay contacts: 2000 VAC
Not isolated between Analog Output and Remote Setpoint commons.
17. CERTIFICATIONS AND COMPLIANCES:
SAFETY
UL Recognized Component, File #E156876, UL873, CSA 22.2 No. 24
Recognized to U.S. and Canadian requirements under the Component
Recognition Program of Underwriters Laboratories, Inc.
Type 4X Enclosure rating (Face only), UL50
IEC 61010-1, EN 61010-1: Safety requirements for electrical equipment
for measurement, control, and laboratory use, Part 1.
IP65 Enclosure rating (Face only), IEC 529
ELECTROMAGNETIC COMPATIBILITY
Notes:
1. No loss of performance during EMI disturbance at 10 V/m.
Unit is panel mounted in a metal enclosure (Buckeye SM7013-0 or
equivalent) that provides at least 20 dB shielding effectiveness. Metal
panel is connected to earth ground.
Power Line and I/O cables routed in metal conduit connected to earth
ground.
2. Self-recoverable loss of performance during EMI disturbance at 10 Vrms:
Analog output may deviate during EMI disturbance.
For operation without loss of performance:
Install power line filter, RLC#LFIL0000 or equivalent.
OR
Install 2 ferrite cores, RLC#FCOR0000 or equivalent, to AC lines at
unit for frequencies above 5 MHz.
I/O cables routed in metal conduit connected to earth ground.
Refer to the EMC Installation Guidelines section of the manual for additional
information.
18. CONNECTION: Wire clamping screw terminals
19. CONSTRUCTION: Black plastic alloy case and collar style panel latch.
Panel latch can be installed for vertical or horizontal instrument stacking.
One piece tinted plastic bezel. Bezel assembly with circuit boards can be
removed from the case to change the output board without removing the case
from the panel or disconnecting wiring. Unit meets NEMA 4X/IP65
requirements for indoor use, when properly installed. Installation Category
II, Pollution Degree 2.
20. WEIGHT: 0.38 lbs (0.17 kgs)
BASIC OPERATION
The P48 controls a process by receiving a linear DC signal representing the
process value, then calculating a control output power value by use of a
modified PID control algorithm. The unit controls the system with the new
output power value to keep the process at setpoint. The PID control algorithm
incorporates features which provide for high control accuracy and low
overshoot from process disturbances.
FRONT PANEL FEATURES
In the normal operating mode, the unit displays the process value in the upper
display. One of the following parameters can be viewed in the lower display:
- Setpoint
- % Power Output
- Process Deviation
- Blank Display
The user scrolls through these parameters by pressing the D button. If
enabled, the control setpoint or power output (manual mode only) can be
directly modified in this mode.
In the normal operating mode, parameters are selected by use of the P button
and modified by use of the UP and DOWN buttons. Parameters are then entered
by the P button, which advances the user to the next parameter. Pressing the D
button immediately returns the controller to the normal operating mode without
changing the currently selected parameter.
HARDWARE FEATURES
A fast 100 msec input sampling rate provides quick controller response to a
process disturbance, thus providing excellent process control. Measurement
accuracy of 0.1% or better, provides close process control conforming to the
desired control setpoint value.
Low-drift, highly stable circuitry ensures years of reliable and accurate
process control. The recommended two year re-calibration interval is easily
accomplished via the programming menu.
REMOTE SETPOINT INPUT
The remote setpoint input facilitates the use of a remote signal to drive the
controller’s setpoint. The remote signal can be scaled independent to that of the
controller’s range. The controller’s response to local/remote setpoint transfers
can be programmed. Also, the remote signal is filtered by use of an adaptive
filter. With this filter, relatively large filtering time constants can be used
without suffering from long settling times. The time constant and filter disable
band are programmable. Additionally, the remote signal can also be velocity
limited (or ramped) to slow the controller’s response to changes in setpoint. This
results in a steady control response with no overshoot.
LINEAR DC ANALOG OUTPUTS
The Main Linear DC output has independent scaling, programmable output
update time and filter (damping) time. These parameters permit flexibility in
process configuration. The output can be set for 0 to 10 V, 0 to 20 mA or 4 to
20 mA ranges and can be configured for control or for re-transmission of input
or setpoint values.
A Second Linear DC output is dedicated for the re-transmission of the
process input signal. The output can be scaled and converted independent of the
input signal and Main Linear DC output. This output is isolated from the input.
SETPOINT FEATURES
The controller setpoint can be protected from out of range values by
programming the setpoint range limit values. Additionally, safeguards from
inadvertent data entry can be programmed.
A second setpoint can be selected by the user input and/or through the front
panel.
The setpoint ramp feature can be used to control the setpoint value at start-up
or any time a setpoint change is made, at a user programmable rate. This feature
reduces shock to the process and helps to minimize overshoot.
INPUT FEATURES
A programmable input filter can be used to stabilize readings from a process
with varying or oscillating process characteristics, helping to provide better
control.
The programmable user input can be used to control a variety of functions,
such as auto/manual transfer of the controller, reset alarm output(s), etc.
OUTPUT FEATURES
Programmable output power limits provide protection for processes where
excessive power can cause damage. Programmable output cycle time, output
hysteresis, and dampening can reduce output activity without degrading control
accuracy. The main outputs can operate in PID, ON/OFF, or manual control
modes.
CONTROL AND ALARM OUTPUTS
In addition to the Linear DC output, there are up to three relay outputs
available. Relay outputs can switch user applied AC or DC voltages for control
or alarm purposes.
Power mains class A
Enclosure class AEN 55011RF interference
Level 3; 10 V/mENV 50204Simulation of cordless telephones
Level 4; 30 A/m
150 KHz - 80 MHz
EN 61000-4-8Power frequency magnetic fields
Level 3; 10 V/rms 2
EN 61000-4-6RF conducted interference
Level 3; 2 Kv power
Level 4; 2 Kv I/OEN 61000-4-4Fast transients (burst)
80 MHz - 1 GHz
Level 3; 10 V/m 1
EN 61000-4-3Electromagnetic RF fields
Level 3; 8 Kv air
Level 2; 4 Kv contact EN 61000-4-2Electrostatic discharge
Emissions to EN 50081-2
Immunity to EN 50082-2
200 Hz, 50% duty cycle
900 MHz ± 5 MHz

F
594 www.redlion.net
AUTO-TUNE
The P48 has an auto-tune feature which, on demand, automatically
determines the PID control parameters for a particular process. After completion
of auto-tune, the PID parameters are automatically optimized for that process
and loaded into non-volatile memory. The operator may view and modify the
parameters as desired.
Auto-tune may be invoked either at start-up or at setpoint, depending on the
process requirements. An auto-tune programmable dampening factor produces
various levels of process control and response characteristics.
RS485 SERIAL COMMUNICATIONS
The RS485 communications option allows the connection of up to 32 devices
on a single pair of wires with a distance of up to 4,000 feet and a maximum baud
rate of 9600. Since the same pair of wires are used for both transmit and receive,
only one way communication is possible at any given time. The controller has a
programmable response time to allow the host device adequate time to release
the communication line for a transmission.
Selected parameters from the P48 can be interrogated or changed, and alarm
output(s) may be reset by sending the proper command code via serial
communications. It is also possible to invoke Auto-tune through the serial port.
Serial communications used with SFCRM software allows for easy controller
parameter configuration by computer.
DUAL TIME PROPORTIONAL SYSTEMS
The P48 is available with dual time proportional outputs. The dual outputs
can be used for level or heat/cool applications. The A2 output can be configured
for Secondary (cool) control. This allows for dual PID control or ON/OFF
control with unbalanced hysteresis.
CONTROLLER PROGRAMMING
Front Panel Program Disable allows all of the controller’s set-ups to be
locked-out from further operator intervention after the initial set-up.
The following four programming modes allow the controller to adapt to any
required user-interface level:
Unprotected Parameter Mode
Protected Parameter Mode
Hidden Function Mode
Configuration Parameter Mode
UNPROTECTED PARAMETER MODE *
The Unprotected Parameter Mode is accessible from the Normal Display
mode when program disable is inactive or when the proper access code number
from the Protected Parameter Mode is entered. The Configuration Parameter
Modes can be accessed only from this mode.
“SP” - Enter setpoint
“OP” - Enter output power
“ProP” - Enter proportional band
“Intt” - Enter integral time
“dErt” - Enter derivative time
“AL-1” - Enter value for alarm #1
“AL-2” - Enter value for alarm #2
“CNFP” - Select configuration access point
“End” - Return to normal display mode
PROTECTED PARAMETERS MODE *
The Protected Parameters Mode is enabled when program disable is active.
This mode prevents access to the configuration modes without the proper access
code number. Only the parameters that are enabled in the Configuration 3
parameter (lock-out section) can be accessed.
“ProP” - Enter proportional band
“Intt” - Enter integral time
“dErt” - Enter derivative time
“AL-1” - Enter value for alarm #1
“AL-2” - Enter value for alarm #2
“CodE” - Enter value to access unprotected parameters and
configuration parameters
HIDDEN FUNCTION MODE *
The Hidden Function Mode is accessible from the Normal Display Mode.
The functions in this mode may be locked-out individually in Configuration 3
parameter (lock-out section).
“SPSL” - Select local (SP1 or SP2) or remote setpoint
“trnF” - Transfer between automatic (PID) control and manual control
“tUNE” - Invoke/cancel PID Auto-tune
“ALrS” - Reset latched alarms
CONFIGURATION PARAMETER MODE
The Configuration Parameter Mode allows the operator to set-up the basic
requirements of the controller. It is divided into sections which group together
related programming steps, such as inputs, outputs, alarms, etc. Upon
completion of each section, the program returns to the Configuration Access
Point allowing the user to return to the Normal Display Mode.
Configuration 1, Inputs (1-IN)
“tYPE” - Select input signal type
“dCPt” - Select scaled display decimal point position
“rnd” - Enter rounding increment and trailing zeros for scaled display
“FLtr” - Select level of input filtering
“dSP1”
“InP1” - Scale main input
“dSP2”
“InP2”
“SPLO” - Enter setpoint lower limit
“SPHI” - Enter setpoint higher limit
“SPrP” - Enter setpoint ramp rate
“InPt” - Select user input function
Configuration 2, Outputs (2-OP) *
“CYCt” - Enter time proportioning cycle time
“OPAC” - Select output control action
“OPLO” - Enter output power low limit
“OPHI” - Enter output power high limit
“OPdP” - Enter output control dampening
“CHYS” - Enter ON/OFF control hysteresis
“tcOd” - Select auto-tuning dampening
“ANtP” - Main Linear DC analog output range
“ANAS” - Main Linear DC analog output source
“ANut” - Main Linear DC analog output update time
“ANLO” - Main Linear DC analog output scaling low
“ANHI” - Main Linear DC analog output scaling high
Configuration 3, Parameter Lock-Outs (3-LC) *
“SP” - Select setpoint access level
“OP” - Select power access level
“dEv” - Enable deviation display
“bdSP” - Enable blank display
“CodE” - Enter parameter access code
“PId” - Select PID access level
“AL” - Select alarm access level
“ALrS” - Enable alarm reset access
“SPSL” - Enable local/remote selection
“trnF” - Enable auto/manual mode selection
“tUNE” - Enable auto-tune invocation
Configuration 4, Alarms (4-AL) *
“ACt1” - Select operation mode of alarm #1, or select main output
“rSt1” - Select reset mode of alarm #1
“Stb1” - Enable activation delay of alarm #1
“AL-1” - Enter value for alarm #1
“ACt2” - Select operation mode of alarm #2, or select second output
“rSt2” - Select reset mode of alarm #2
“Stb2” - Enable activation delay of alarm #2
“AL-2” - Enter value for alarm #2
“AHYS” - Enter hysteresis value for both alarms
Configuration 5, Second Output (5-O2) *
“CYC2” - Enter time proportioning cycle time
“GAN2” - Enter relative gain
“db-2” - Enter deadband or overlap
Configuration 6, Serial Communications (6-SC) *
“bAUd” - Select baud rate
“ConF” - Select character frame format
“Addr” - Enter address
“Abrv” - Select abbreviated or full transmission
“PoPt” - Select print options
Configuration 7, Remote Setpoint Input (7-N2) *
“dSP1” - Enter remote setpoint display scaling value #1
“INP1” - Enter remote setpoint process scaling value #1
“dSP2” - Enter remote setpoint display scaling value #2
“INP2” - Enter remote setpoint process scaling value #2
“FLtr” - Enter remote setpoint filter time constant
“bAnd” - Enter remote setpoint filter disable band
“trnF” - Select Local/Remote setpoint transfer response
Configuration 8, Second Linear DC Analog Output (8-A2) *
“A2tP” - Second linear DC analog range
“A2LO” - Second linear DC analog scaling low
“A2HI” - Second linear DC analog scaling high
Configuration 9, Factory Service Operations (9-FS)
“Code 48” - Calibrate Instrument
“Code 66” - Reset parameters to factory setting
*These parameters may not appear due to option configuration or other
programming.

F
5951-717-767-6511
APPLICATION
WATER PROCESSING APPLICATION
A city water company needs to maintain a steady flow of water for their
customer needs. They have an existing 0 to 10 VDC flow transmitter to
measure the water flow. They need to control the water flow, have a high and
low alarm, and keep a recorded chart of the flow for later reference. The Main
Linear DC output of the P48 can be used to control the position of water
output values per the desired flow setpoint value. The P48 relay outputs can
be programmed to give a high flow alarm and a low flow alarm. With the
Second Linear DC output model, the flow measurement to the P48 can be
converted from 0-10 V to 4-20 mA and retransmitted to a 4-20 mA chart
recorder.
CHART
RECORDER
HIGH
ALARM
LOW
ALARM
WATER FLOW
ALARM
POWER
+-
CONTROL
VALVE
FLOW
SENSOR
UNIT POWER
MULTIPLE UNIT STACKING
The P48 is designed for close spacing of multiple units. Units can be
stacked either horizontally or vertically. For vertical stacking, install the panel
latch with the screws to the sides of the unit. For horizontal stacking, the panel
latch screws should be at the top and bottom of the unit. The minimum
spacing from center line to center line of units is 1.96" (49.8 mm). This
spacing is the same for vertical or horizontal stacking.
Note: When stacking units, provide adequate panel ventilation to ensure that
the maximum operating temperature range is not exceeded.
PANEL LATCH INSTALLED FOR
VERTICAL UNIT STACKING
PANEL LATCH INSTALLED FOR
HORIZONTAL UNIT STACKING
PANEL CUT-OUT SPACING FOR MULTIPLE UNIT STACKING.
HORIZONTAL ARRANGEMENT SHOWN.
(Terminal assignments are model number dependent.)
ORDERING INFORMATION
Options and Output Boards are factory configured per the part number specified. Part numbers without replacement output boards listed must be returned
to the factory for output board replacement.
DEDICATED
MAIN CONTROL
O1 OUTPUT
MAIN CONTROL
O1 or
A1(ALARM 1)*
DEDICATED
ALARM 1
A1 OUTPUT
A2 (ALARM 2)
OR O2
(SECONDARY)*
REMOTE
SETPOINT
INPUT @
RS485 @
MAIN
ANALOG
OUTPUT** @
SECOND
ANALOG
OUTPUT** @
PART NUMBERS
85 to 250 VAC18-36 VDC/24 VAC
REPLACEMENT
OUTPUT
BOARD
YES P4800001P4800011NA
Relay P4810000P4810010RBD48100
Relay Relay YES P4810101P4810111NA
Relay Relay YES YES P4810105P4810115NA
Relay Relay YES YES P4810107P4810117NA
Relay Relay YES YES P481010AP481011ANA
Relay Relay Relay P4811100P4811110RBD48111
Relay Relay Relay YES P4811102P4811112RBD48111
* This output is programmable as either Control (PID) or as an Alarm.
** This output is jumper and program selectable for either a current or a voltage Linear DC output.
@ These part numbers are equipped with a second setpoint.
MODEL NO. DESCRIPTION PART NUMBERS
ICM5
ICM4
SFCRM
Three Way Isolated RS232/RS485 Serial Converter Module
RS232/RS485 Serial Converter Module
ICM50000
ICM40030
SFCRM
ACCESSORIES
Option Boards are installed at the factory for the appropriate models. These boards are only needed for field replacement.
Crimson 2 PC Configuration Softwware for Windows 98, ME, 2000 and XP (for RS485 models)
*Crimson Software is available for download from http://www.redlion.net

F
596 www.redlion.net
100 MSEC SAMPLING PERIOD WITH 0.15% ACCURACY
ON DEMAND AUTO-TUNING OF PID CONTROL SETTINGS
DUAL LED DISPLAYS FOR SIMULTANEOUS INDICATION OF
PROCESS VALUE AND SETPOINT OR SECOND ANALOG INPUT
ACCEPTS EITHER 0 to 10 VDC OR 0 to 20 mA DC INPUTS
SELF-DIAGNOSTICS
FULL PID CONTROL WITH REDUCED OVERSHOOT
OPTIONAL RS485 SERIAL COMMUNICATIONS INTERFACE
OPTIONAL DUAL ALARM OUTPUTS (USES OUTPUT MODULES)
OPTIONAL SECONDARY OUTPUT (USES OUTPUT MODULE)
OPTIONAL LINEAR 4 to 20 mA OR 0 to 10 VDC OUTPUT FOR
CONTROL OR PROCESS VALUE RE-TRANSMISSION
OPTIONAL MOTORIZED VALVE POSITION CONTROL AND
VALVE FAIL ALARM
OPTIONAL SECOND ANALOG INPUT FOR REMOTE SETPOINT
AND CASCADE CONTROL
OPTIONAL NEMA 4X/IP65 SEALED FRONT BEZEL
STATUS INDICATORS FOR OUTPUTS AND CONTROL MODES
PROGRAMMABLE USER INPUT (DIGITAL) FOR ADDED
FLEXIBILITY
MANUAL/AUTOMATIC AND LOCAL/REMOTE SETPOINT
CONTROL MODES
SETPOINT RAMPING FOR PROCESS STARTUP
PARAMETER SECURITY VIA PROGRAMMABLE LOCKOUTS
FIELD REPLACEABLE AND INTERCHANGEABLE OUTPUT
MODULES (Relay, Logic/SSR Drive and Triac)
DESCRIPTION
The PCU Controller accepts either 0 to 10 VDC or a 0 to 20 mA DC input
signal, precisely scales the process signal according to programmable scaling
points, and provides an accurate output control signal (time proportional, linear,
or valve position) to maintain a process at the desired control point. A
comprehensive set of easy to use program instructions allows the controller to
solve various applications.
The controller can operate in the PID control mode for both the main output
and optional secondary output, with on-demand auto-tune, that establishes the
tuning constants. The PID tuning constants may be fine-tuned by the operator
at any time and then locked-out from further modification. The controller
employs a unique overshoot suppression feature, which allows the quickest
response without excessive overshoot. The unit can be transferred to operate in
the manual mode, providing the operator with direct control of the output. The
controller may also be programmed to operate in the ON/OFF control mode
with adjustable hysteresis.
Dual 4-digit displays allow viewing of the process value and setpoint
simultaneously. Front panel indicators inform the operator of the controller and
output status. Replaceable and interchangeable output modules (Relay,
Logic/SSR Drive, or Triac) can be installed for the main control output, alarm
output(s) and secondary output.
MODEL PCU - PROCESS CONTROL UNIT
DIMENSIONS In inches (mm)
Note: Recommended minimum clearance (behind the panel) for mounting clip installation is 5.5" (140) H x 2.1" (53.4) W.
C
C
US LISTED
US LISTED
UL
R
IND. CONT. EQ.
51EB
PANEL CUT-OUT

F
5971-717-767-6511
OPTIONS
Optional dual alarms can be configured to activate according to a variety of
actions (Absolute HI or LO, Deviation HI or LO, Band IN or OUT and Valve
Fail Detect) with adjustable hysteresis. A standby feature suppresses the output
during power-up until the process stabilizes outside the alarm region. An
optional secondary output is available (for processes that require cooling) that
provides increased control accuracy and response.
A linear 4 to 20 mA or 0 to 10 VDC output signal is available to interface
with actuators, chart recorders, indicators, or other controllers. The output signal
can be digitally scaled and selected to transmit one of the following: % output
power, measurement value, process measurement value deviation or setpoint
value. Valve Positioner and Second Analog Input Models have the adjustable
output demand dampening, output deadband and output update time parameters
to expand the versatility of the PCU to control devices.
The optional Motorized Valve Positioner directly controls the position of a
valve by the use of twin outputs (open and close) to control the direction of
motor rotation. The motor position defines the opening position of the valve.
Two control modes are possible: position control, that makes use of the
slidewire feedback signal supplied with the positioner and velocity control, in
which no slidewire feedback signal is used. Parameters are provided to adjust
the operation of the valve. These include:
- Valve activity hysteresis
- Valve update time
- Variable control dampening
- Slidewire signal fail action
- Adjustable valve position limits
The Valve Positioner PCU achieves tight process control, yet minimizes
unnecessary valve activity. An alarm event output or display alarm can be
programmed under loss of slidewire feedback or under valve fail detection.
The optional Second Analog Input (0 to 20 mA DC) can be configured as a
remote setpoint signal or as a secondary process signal. Configuration of the
second analog input as a remote setpoint signal allows ratio control, master
setpoint/multiple slave operation, and the ability to cascade the PCU with
another controller (external cascade). Configuration of the second input as a
secondary process signal allows operation as a two-process cascade controller
within a single unit (internal cascade). In either control mode, parameters are
provided to scale, configure, communicate and monitor the activity of both
analog inputs. A square law linearizer function can be used to linearize signals
derived from flow transmitters.
The optional RS485 multidrop serial communication interface provides two-
way communication between a PCU unit and other compatible equipment such
as a printer, a programmable controller, or a host computer. In multipoint
applications the address number of each unit on the line can be programmed
from zero to ninety-nine. Up to thirty-two units can be installed on a single pair
of wires. The Setpoint value, % Output Power, Setpoint Ramp Rate, etc. can be
interrogated or changed by sending the proper command code via serial
communications. Alarm output(s) may also be reset via the serial
communications interface option.
An optional NEMA 4X/IP65 rated bezel is available for wash down and/or
dirty environments, when properly installed. Modern surface-mount
technology, extensive testing, plus high immunity to noise interference makes
the controller extremely reliable in industrial environments.
SAFETY SUMMARY
All safety related regulations, local codes and instructions that appear in the
manual or on equipment must be observed to ensure personal safety and to
prevent damage to either the instrument or equipment connected to it. If
equipment is used in a manner not specified by the manufacturer, the protection
provided by the equipment may be impaired.
Do not use the PCU to directly command motors, valves, or other actuators
not equipped with safeguards. To do so, can be potentially harmful to persons
or equipment in the event of a fault to the unit. An independent and redundant
limit indicator with alarm outputs is strongly recommended. Red Lion Controls
offers various units (such as an IMP, IMD1 or IMD2) that may be used for this
purpose. The indicators should have input sensors and AC power feeds
independent from other equipment.
SPECIFICATIONS
1. DISPLAY: Dual 4-digit
Upper Process Display: 0.4" (10.2 mm) high red LED
Lower Auxiliary Display: 0.3" (7.6 mm) high green LED
Display Messages (Model dependent):
“OLOL” - Appears when measurement exceeds +105% input range.
“ULUL” - Appears when measurement exceeds -5% input range.
“SENS” - Appears when measurement exceeds “OLOL” & “ULUL”
range.
“....” - Appears when display values exceed + display range.
“-...” - Appears when display values exceed - display range.
“SLid” - Appears when loss of slidewire signal is detected.
“VALV” - Appears when valve actuator error is detected.
2. POWER: Switch selectable 115/230 VAC (+10%, -15%) no observable line
variation effect, 48 to 62 Hz, 10 VA.
3. ANNUNCIATORS:
LED Backlight Status Indicators (Model dependent):
%PW - Lower auxiliary display shows power output in (%).
DEV - Lower auxiliary display shows deviation (error)
from process setpoint.
OP1 - Main control output is active.
AL1 - Alarm #1 is active.
AL2 - Alarm #2 is active (for Dual Alarm Option).
OP2 - Secondary output is active
(for Secondary Output Option).
OPN - Valve positioner OPEN output is active
(for Valve Positioner Option).
CLS - Valve positioner CLOSE output is active
(for Valve Positioner Option).
SEC - Lower auxiliary display shows second analog input
(for Second Analog Input Option).
MAN - Flashing: Controller is in Manual control mode.
REM - ON: controller is in remote setpoint mode
(Second Analog Input Option).
- OFF: controller is in local setpoint mode
(Second Analog Input Option).
- Flashing: controller is in Manual control mode
(Second Analog Input Optional).
4. CONTROLS: Four front panel push buttons for modifying and setup of
controller functions and one external input for parameter lockout or other
functions.
5. SIGNAL INPUT:
Sample Period: 100 msec typ.
Response Time: 300 msec typ. (to within 99% of final value w/step input)
Signal Overdrive Threshold:
10 V Range: 13 V typ.
20 mA Range: 26 mA typ.
Signal Overdrive Response:
Main Control Output: Programmable preset output
Display: “SENS”
Alarms: Upscale drive
DC Linear: Programmable preset output
Normal Mode Rejection: 40 dB typ. @ 50/60 Hz (improves with increased
digital filtering).
Common Mode Rejection: 100 dB typ., DC to 60 Hz
Protection: Input overload 120 VAC for 30 seconds.
Range And Accuracy:
6.
OUTPUT MODULES [Optional] (For All Output Channels):
Relay:
Type: Form-C (Form-A with some models. See Ordering Information.)
Rating: 5 Amps @ 120/240 VAC or 28 VDC (resistive load), 1/8 HP @
120 VAC (inductive load) max.
Life Expectancy: 100,000 cycles at max. load rating. (Decreasing load
and/or increasing cycle time, increases life expectancy).
Logic/SSR Drive: Can drive multiple SSR Power Units.
Type: Non-isolated switched DC, 12 VDC typ.
Drive: 45 mA max.
Triac:
Type: Isolated, Zero Crossing Detection
Rating:
Voltage: 120/240 VAC
Max. Load Current: 1 Amp @ 35°C
0.75 Amp @ 50°C
Min. Load Current: 10 mA
Off State Leakage Current: 7 mA max. @ 60 Hz
Operating Frequency: 20 to 400 Hz
Protection: Internal Transient Snubber, Fused
7. MAIN CONTROL OUTPUT:
Control: PID or ON/OFF
Output: Time proportioning or linear DC
Hardware: Plug-in, replaceable output modules
Cycle time: Programmable
Auto-tune: When selected, sets proportional band, integral time, and
derivative time values.
Signal Overdrive Action: Programmable
SIGNAL
RANGE
MAXIMUM
INPUT
INPUT
IMPEDANCE RESOLUTION
0 to 10 VDC ±(0.15% + 3 mV) 300 VDC 1 MΩ10 mV
0 to 20 mA DC ±(0.15% + 6 µA) 200 mA DC 10 Ω10 µA
ACCURACY (%
OF UNSCALED
READING)

F
598 www.redlion.net
SPECIFICATIONS (Cont’d)
8. SECONDARY OUTPUT (Optional):
Control: PID or ON/OFF
Output: Time proportioning or linear DC
Hardware: Plug-in, replaceable output modules
Cycle time: Programmable
Proportional Gain Adjust: Programmable
Deadband Overlap: Programmable
9. LINEAR DC OUTPUT (Optional): With digital scale and offset,
programmable deadband and update time.
4 to 20 mA:
Resolution: 1 part in 3500 typ.
Accuracy: ±(0.1% of reading + 25 μA)
Compliance: 10 V (500 Ωmax. loop impedance)
0 to 10 VDC:
Resolution: 1 part in 3500 typ.
Accuracy: ±(0.1% of reading + 35 mV)
Min. Load Resistance: 10 KΩ(1 mA max.)
Source: % output power, setpoint, deviation, or process value
(Available for OP1 or OP2, but not both.)
10. MOTORIZED VALVE POSITIONER (Optional):
Two Outputs: Valve open and valve close or Linear DC (optional)
Hardware: Plug-in, replaceable output modules
Three Inputs: Slidewire feedback, signal fail detect (Isolated from main
input)
Slidewire Resistance: 100 Ωto 100 KΩ
Slidewire Exciting Voltage: 0.9 VDC typ.
Slidewire Fail Action: programmable
Control Mode: Position mode (with slidewire) and velocity mode (w/o
slidewire).
Control Deadband: 1% to 25.0% (position mode)
0.1 to 25.0 seconds (velocity mode)
Update Time: 1 to 250 seconds
Motor Time (open, close): 1 to 9999 seconds
Position Limits: Adjustable 0.0 to 100.0% of valve stroke
Valve Fail Time: Off to 9999 seconds
Alarm mode: Dual acting; loss of slidewire feedback signal and valve fail
detection
11. SECOND ANALOG INPUT:
Range: 0 to 20 mA (Isolated from main input)
Overload: 100 mA MIN (steady state)
Input Resistance: 10 Ωtyp.
Voltage Drop (@ 20 mA): 0.2 V typ.
Accuracy: 0.15% of reading ±10 μA ±1 LSD
Scale Range: -999 to 9999
12. SERIAL COMMUNICATION:
Type: RS485 Multi-point, Balanced Interface
Communication Format:
Baud Rate: Programmable from 300 to 9600
Parity: Programmable for odd, even, or no parity
Frame: 1 start bit, 7 data bits, 1 or no parity bit, 1 stop bit
Unit Address: Programmable from 0 to 99, max. of 32 units per line
Transmit Delay: 100 msec min., 200 msec max.
RS485 Common: Isolated from signal input common
Auto Print Time: Off to 9999 seconds between print-outs
13. USER INPUT (Optional): Internally pulled up to +5 VDC.
VIN = 5.25 VDC MAX, VIL = 0.85 VMAX; VIH = 3.0 VMIN,
Available on all second input (MVP & ANA) models, and on models with
RS485.
Response Time: 100 msec max.
Functions: Program Lock
Integral Action Lock
Auto/Manual Mode Select
Setpoint Ramp Select
Reset Alarms
Print Request
Local/Remote Setpoint Select
14. ALARMS (Optional):
Hardware: Plug-in, replaceable output module
Modes: Absolute high acting
Absolute low acting
Deviation high acting
Deviation low acting
Inside band acting
Outside band acting
Valve fail
Second Analog Input monitoring
Reset Action: Programmable; automatic or latched
Standby Mode: Programmable; enable or disable
Hysteresis: Programmable
Signal Overdrive Action: Upscale
Annunciator: LED backlight for “AL1”, “AL2”, (Alarm #2 not available
with secondary output or motorized valve position option.)
15. ENVIRONMENTAL CONDITIONS:
Operating Temperature Range: 0 to 50°C
Storage Temperature Range: -40 to 80°C
Span Drift (maximum): 100 ppm/°C, main input; 150 ppm/°C, second input
Zero Drift (maximum):
4 to 20 mA DC Range: 0.5 μA/°C
0 to 10 VDC Range: 0.2 mV/°C
Second Input: 2 μA/°C
Relative Humidity: Less than 85% RH (non-condensing)
Altitude: Up to 2000 meters
16. ISOLATION BREAKDOWN RATINGS:
All inputs and outputs with respect to AC line: 2300 VMIN
Analog Outputs, Second Analog Input or Slidewire Input with respect to
main input: 500 VMIN
17. CERTIFICATIONS AND COMPLIANCES:
SAFETY
UL Listed, File #E137808, UL508, CSA C22.2 No. 14-M95
LISTED by Und. Lab. Inc. to U.S. and Canadian safety standards
UL Recognized Component, File # E156876, UL873, CSA C22.2 No. 24
Recognized to U.S. and Canadian requirements under the Component
Recognition Program of Underwriters Laboratories, Inc.
Type 2 or 4X Enclosure rating (Face only), UL50
IECEE CB Scheme Test Certificate #UL1239-156876/USA,
CB Scheme Test Report #96ME50279-070794
Issued by Underwriters Laboratories, Inc.
IEC 1010-1, EN 61010-1: Safety requirements for electrical equipment
for measurement, control, and laboratory use, Part 1.
IP65 Enclosure rating (Face only), IEC 529
ELECTROMAGNETIC COMPATIBILITY:
Notes:
1. Self-recoverable loss of performance during EMI disturbance at 10 V/m:.
Process and/or analog output signals may deviate during EMI
disturbance.
For operation without loss of performance:
Install power line filter, RLC #LFIL0000 or equivalent.
2. Self-recoverable loss of performance during EMI disturbance at 10 Vrms:
Process and/or analog output signals may deviate during EMI disturbance.
For operation without loss of performance:
Install power line filter, RLC #LFIL0000 or equivalent and 1 ferrite
core 1 turn, RLC #FCOR0000 or equivalent, to cable at unit.
Refer to the EMC Installation Guidelines section of the manual for additional
information.
18. CONNECTION: Jaw-type terminal block
Wire Range: 12-30 AWG copper wire
Torque: 5-7 inch-lbs (56-79 N-cm)
19. CONSTRUCTION: NEMA 2 For Standard Models.
Front Panel: Flame and scratch resistant tinted plastic
Case: High impact black plastic. (Mounting collar included)
NEMA 4X/IP65 model only: Sealed bezel utilizing two captive mounting
screws (panel gasket included) This unit is rated for NEMA 4X/IP65
indoor use. Installation Category II, Pollution Degree 2
20. WEIGHT: 1.3 lbs (0.6 kgs)
Level 4; 30 A/m
Immunity to EN 50082-2
Electrostatic discharge EN 61000-4-2
Level 3; 8 Kv air
Level 2; 4 Kv contact
Electromagnetic RF fields EN 61000-4-3 Level 3; 10 V/m1
80 MHz - 1 GHz
Fast transients (burst) EN 61000-4-4 Level 4; 2 Kv I/O
Level 3; 2 Kv power
RF conducted interference EN 61000-4-6 Level 3; 10 V/rms2
150 KHz - 80 MHz
Emissions to EN 50081-2
RF interference EN 55011 Enclosure class A
Power mains class A
Power frequency magnetic fields EN 61000-4-8

F
5991-717-767-6511
BASIC OPERATION
The PCU controls a process by measuring the input signal and then calculating
a control output power value by use of a modified PID control algorithm. The unit
controls the system with the new output power value to keep the process at
setpoint. The PID control algorithm incorporates features that provide for high
control accuracy and low overshoot from process disturbances.
FRONT PANEL FEATURES
In the normal operating mode, the unit displays the scaled process value in the
upper display. One of four other parameters can be viewed in the lower display:
- Setpoint
- % Power Output
- Deviation
- Second Input Process Value
The parameters can be scrolled through by pressing the DSP button. If
enabled, the control setpoint or power output (manual mode only) can be
directly modified in this mode.
In the normal operating mode, parameters are selected by use of the PAR
button and modified by use of the UP and DOWN buttons. Parameters are then
entered by the PAR button, which advances the user to the next parameter.
Pressing the DSP button immediately returns the controller to the normal
operating mode when making a parameter change. The controller’s configuration
and parameter settings are stored in an internal E2PROM device.
HARDWARE FEATURES
The fast 100 msec input sampling rate provides quick controller response to
a process disturbance, thus providing excellent process control. Measurement
accuracy of 0.15% or better, provides closer process control conforming to the
desired control setpoint value. The unit accepts either a 0 to 10 VDC or a 0 to
20 mA DC input signal. The AC input power is switch selectable, allowing the
unit to operate from either 115 VAC or 230 VAC. Since the controller is
serviceable from the front of the panel, the output modules may be easily
changed or replaced without disturbing the wiring behind the panel. No re-
programming is required when changing or replacing modules.
The optional NEMA 4X/IP65 rated model utilizes two bezel securing screws
and a neoprene gasket to guarantee a water tight seal, when properly installed.
The standard model simply requires pressing a latch to remove the unit.
Low-drift, highly stable circuitry ensures years of reliable and accurate
process control. The recommended two-year re-calibration interval is easily
accomplished via the programming menu.
SETPOINT FEATURES
The controller setpoint can be protected from out of range values by
programming the setpoint range limit values. Additionally, safeguards from
inadvertent data entry can be programmed.
The setpoint ramp feature ramps the setpoint value at start-up or any time a
setpoint change is made, at a user programmable rate. This feature reduces
shock to the process and helps to minimize overshoot. The setpoint may also be
transmitted by the optional linear DC output for slave control loops.
The second analog input may be configured as a remote setpoint. As such, the
controller is easily switched from local/remote setpoint operation via the front
panel or user input. Ratio and bias parameters provide on-line scaling of the
remote setpoint. Absolute limit values and maximum rate of change of the
remote setpoint further enhance controller flexibility.
INPUT FEATURES
A programmable input filter can be used to stabilize readings from a process
with varying or oscillating characteristics, helping to provide better process
control. Programmable scaling points allow the controller to display in any
engineering unit; flow, level, pressure, etc. Scaling points are used in
conjunction with the programmable rounding increment to stabilize a jittery or
otherwise hard to read process signal for better indication.
The programmable User Input can be used to control a variety of functions,
such as auto/manual transfer of the controller, reset alarm output(s), etc.
The second analog input has independent scaling parameters to match the
units of other processes or transmitters, or to match the controller’s range.
OUTPUT FEATURES
Programmable output power limits provide protection for processes where
excessive power can cause damage. Automatic signal overdrive detection, for
fail-safe operation, causes the controller to default to a programmed output
power (upscale or downscale burnout). With adjustable time proportioning
cycle time, and programmable DC linear output, the controller can satisfy a
wide variety of output requirements.
Programmable dampening output hysteresis and output update time parameters
can dramatically reduce actuator activity without degrading control accuracy.
The RS485 Communication option allows the user to access various
controller parameters such as the setpoint, % output power, % proportional
band, etc. The controller may be set up to transmit various parameters at a
programmable automatic print rate.
AUTO-TUNE
The PCU has an auto-tune feature that, on demand, automatically determines
the PID control parameters for a particular process. After completion of auto-
tune, the PID parameters are automatically optimized for that process and
loaded into nonvolatile memory. The operator may view and modify the
parameters as desired.
Auto-tune may be invoked either at start-up or at setpoint, depending on the
process requirements. An auto-tune programmable dampening factor produces
various levels of process control and response characteristics.
OPTIONS
RATIO CONTROL
The PCU configured for ratio operation controls a process as a ratio of
another process or to another variable. Ratio control is commonly used for flow
applications, however, any two process variables can be controlled in a
ratio mode.
Ratio Control Configuration Parameters
“OPEr” - Select ratio mode
“root” - Select second input square root linearization
“dPt2” - Select second input decimal point
“dSP1”
“INP1”
“dSP2” - Enter scaling units of second input
“INP2”
“SPtr” - Local/Remote Select options
“InPt” - Program User Input for Local/Remote
Setpoint selection
Ratio Control Operational Parameters
“rtio” - Remote setpoint ratio
“bIAS” - Remote setpoint bias
MOTORIZED VALVE POSITIONER
The motorized valve positioner controls the position of a valve directly, by
use of “open” and “close” control outputs. The slidewire feedback signals of
the valve may optionally be connected to the controller. Alternatively, the
controller may be configured for linear input valve control using the 4 to 20 mA
DC output.

F
600 www.redlion.net
Motorized Valve Positioner Configuration Parameters
Position mode: “VPS1” - Enter or measure valve closed position
“VPS2” - Enter or measure valve open position
“VUdt” - Enter Valve update time
“VPdb” - Enter valve control deadband
“VFAL” - Enter valve fail detect time
“Act1” - Program alarm as valve fail output
Velocity mode: “VUdt” - Enter Valve update time
“VOPt” - Enter valve open time
“VCLt” - Enter valve close time
“VOnt” - Enter valve control deadband
(minimum on time)
INTERNAL CASCADE
Cascade control allows the process to be divided into two control loops: the
primary control loop and the secondary control loop. The secondary loop receives
its setpoint from the primary loop to control an intermediate variable (steam
pressure). The control level of the intermediate variable is the input to the primary
process. The primary loop (main input) controller maintains loop regulation by
manipulating the setpoint of the secondary controller. The setpoint of the
secondary controller, in turn, changes the intermediate variable. The secondary
loop can react faster to disturbances of the intermediate variable, thereby
minimizing the effects to the primary control loop. Control loops cascaded in such
a manner provide greater control quality than would be possible with single loop
control. A single PCU can accomplish two-process cascade control.
Internal Cascade Configuration Parameters
“OPEr” - Select cascade mode
“root” - Select second input square root linearization
“dPt2” - Select second input decimal point
“dSP1”
“INP1”
“dSP2” - Enter scaling units of second input
“INP2”
“OPd2” - Output dampening of secondary
Internal Cascade Operational Parameters
“SP-2” - View secondary setpoint value
“Pb-2” - Enter secondary proportional band
“It-2” - Enter secondary integral time
“dt-2” - Enter secondary derivative time
EXTERNAL CASCADE
Similar to internal cascade control, external cascade control differs by the
employment of two controllers, one of which is equipped with a second analog
input configured as a remote setpoint. A PCU controls the secondary loop, while
a TCU controls the primary loop.
External Cascade Configuration Parameters
“OPEr” - Select ratio mode
“root” - Select second input square root linearization
“dPt2” - Select second input decimal point
“dSP1”
“INP1”
“dSP2” - Enter scaling units of second input
“INP2”
“SPtr” - Local/Remote select options
External Cascade Operational Parameters
“rtio” - Remote setpoint ratio
“bIAS” - Remote setpoint bias
SETPOINT MASTER CONTROL
Setpoint Master Control allows automatic setpoint changes to slave
controller units (up to 50 units total) from a master PCU controller. The
linear DC output of the master is looped with the second analog input
of the slave PCU controllers. Each slave unit can have unique remote
setpoint ratio and bias values.
Setpoint Slave Configuration Parameters
“OPEr” - Select remote setpoint mode
“root” - Select second input square root
linearization
“dPt2” - Select second input decimal point
“dSP1”
“INP1”
“dSP2” - Enter scaling units of second input
“INP2”
“SPLO”
“SPHI” - Limit range of remote setpoint
“SPrP” - Limit rate of change of remote
setpoint
Setpoint Slave Operational Parameters
“rtio” - Second input ratio
“bIAS” - Second input bias

F
6011-717-767-6511
CONTROLLER PROGRAMMING
The PCU has been designed to reduce the operator interaction with the
controller while still maintaining a high degree of control accuracy and user
flexibility. Front Panel Program Disable allows all of the controller’s set-ups to be
locked-out from further operator intervention after the initial parameter set-up.
The programming of the controller is divided into four sections:
Unprotected Parameter Mode
Configuration Parameter Mode
Protected Parameter Mode
Hidden Function Mode
These four programming modes allow the controller to adapt to any required
user-interface level.
UNPROTECTED PARAMETER MODE *
The unprotected parameter mode is accessible when program disable is
inactive or when the proper access code number from the protected mode is
entered. The configuration parameter modes can be accessed only from this mode.
“SP” - Enter Setpoint
“OP” - Enter output power
“Prop” - Enter proportional band
“Intt” - Enter integral time
“dErt” - Enter derivative time
“rtio” - Enter Remote Setpoint ratio value
“bIAS” - Enter Remote Setpoint bias value
“SP-2” - View internal cascade secondary setpoint
demand
“Pb-2” - Enter internal cascade, secondary
proportional band
“It-2” - Enter internal cascade, secondary integral
time
“dt-2” - Enter internal cascade, secondary derivative
time
“AL-1” - Enter value for alarm #1
“AL-2” - Enter value for alarm #2
“CNFP” - Select basic configuration mode
“End” - Return to normal display mode
CONFIGURATION PARAMETER MODE
The configuration parameter mode allows the operator to set up the basic
requirements of the controller. It is divided into sections which group together
related programming steps, such as inputs, outputs, alarms, etc. Upon
completion of each section, the program returns to the configuration selection
stage allowing the user to return to the normal display mode.
Configuration 1, Inputs
“tYPE” - Select input signal type
“root” - Select square root linearization of main
input *
“dCPt” - Select scaled display decimal point position
“rnd” - Enter rounding increment and trailing zeroes
for scaled display
“FLtr” - Select level of input filtering
“dSP1”
“INP1”
“dSP2” - Scale main input
“INP2”
“SPLO” - Enter setpoint lower limit
“SPHI” - Enter setpoint higher limit
“SPrP” - Enter setpoint ramp rate
“InPt” - Select user input function *
Configuration 2, Outputs
“CYCt” - Enter time proportioning cycle time
“OPAC” - Select control action
“OPLO” - Enter output power low limit
“OPHI” - Enter output power high limit
“OPFL” - Enter signal overdrive power preset
“OPdP” - Enter output control dampening
“CHYS” - Enter ON/OFF control hysteresis
“tcod” - Select auto-tuning dampening
“ANAS” - Select linear DC output assignment *
“ANLO” - Enter linear DC output low scaling value *
“ANHI” - Enter linear DC output high scaling value *
“ANdb” - Enter linear DC output control deadband *
“ANUt” - Enter linear DC output update time *
Configuration 3, Parameter lock-outs
“SP” - Select degree of setpoint access
“OP” - Select degree of power access
“dEv” - Enable deviation display *
“IN-2” - Enable second input display *
“bdSP” - Enable blank display
“CodE” - Enter parameter access code
“PId” - Select degree of PID access
“PId2” - Select degree of secondary PID access *
“rtbS” - Select degree of ratio/bias access *
“AL” - Select degree of alarm access *
“ALrS” - Enable alarm reset access *
“SPSL” - Enable local/remote setpoint selection *
“trnF” - Enable auto/manual mode selection
“tUNE” - Enable auto-tune invocation
Configuration 4, Alarms *
“Act1” - Select operation mode of alarm #1
“rSt1” - Select reset mode of alarm #1
“Stb1” - Enable activation delay of alarm #1
“AL-1” - Enter value for alarm #1
“Act2” - Select operation mode of alarm #2
“rSt2” - Select reset mode of alarm #2
“Stb2” - Enable activation delay of alarm #2
“AL-2” - Enter value for alarm #2
“AHYS” - Enter hysteresis value for both alarms
Configuration 5, Secondary Output *
“CYC2” - Enter time proportioning cycle time
“GAN2” - Enter relative gain
“db-2” - Enter deadband or overlap
Configuration 6, Serial Communications *
“bAUd” - Select baud rate
“PArb” - Select parity bit
“Addr” - Enter unit address number
“Abrv” - Select abbreviated or full mnemonic
transmissions
“PrAt” - Enter automatic print rate
“PoPt” - Select parameters to be included in print-out
Configuration 7, Second Input *
“OPEr” - Select remote setpoint or internal cascade
mode
“root” - Select second input square root linearization
“dPt2” - Select second input decimal point
“dSP1”
“INP1”
“dSP2” - Entering scaling parameters of second input
“INP2”
“SPtr” - Enter local/remote select options
“OPd2” - Enter Secondary output control dampening
Configuration 8, Motorized Valve Positioner *
Position mode: “VPS1” - Enter or measure valve closed position
“VPS2” - Enter or measure valve open position
“VUdt” - Enter valve update time
“VPdb” - Enter valve control deadband
“VFAL” - Enter valve fail detect time
Velocity mode: “VUdt” - Enter valve update time
“VOPt” - Enter valve open time
“VCLt” - Enter valve close time
“VOnt” - Enter valve control deadband
(minimum on time)
HIDDEN FUNCTION MODE *
The hidden function mode is accessible from the normal operating mode. The
four functions in this mode may be locked-out individually in configuration 3
parameter lock-out section.
“SPSL” - Select Local/Remote Setpoint
“trnF” - Transfer between automatic (PID) control
and manual control
“tUNE” - Invoke/cancel PID Auto-tune
“ALrS” - Reset latched alarms
*These parameters may not appear due to option configuration or other
programming.

F
602 www.redlion.net
PROTECTED PARAMETERS MODE *
The protected parameters mode is enabled when program disable is active.
This mode prevents access to the configuration modes without the proper access
code number. Only the parameters that are selected in the configuration 3
parameter lock-out section can be accessed.
“ProP” - Enter Proportional band
“Intt” - Enter integral time
“dErt” - Enter derivative time
“rtio” - Enter remote setpoint ratio value
“bIAS” - Enter remote setpoint bias value
“SP-2” - Enter internal cascade, secondary setpoint
“Pb-2” - Enter internal cascade, secondary
proportional band
“It-2” - Enter internal cascade, secondary integral
time
“dt-2” - Enter internal cascade, secondary derivative
time
“AL-1” - Enter value for alarm #1
“AL-2” - Enter value for alarm #2
“CodE” - Enter access value to unprotected
parameters & configuration parameters
*These parameters may not appear due to option configuration or other
programming.
OUTPUT MODULES
TYPICAL CONNECTIONS
Relay:
Type: Form-C (Form-A with some models. See ordering information.)
Rating: 5 amps @ 120/240 VAC or 28 VDC (resistive load), 1/8 HP @ 120
VAC (inductive) maximum.
Life Expectancy: 100,000 cycles at maximum load rating.
(Decreasing load and/or increasing cycle time, increases life expectancy).
Logic/SSR Drive: Can drive multiple SSR Power Units.
Type: Non-isolated switched DC, 12 VDC typical
Drive: 45 mA maximum.
Triac:
Type: Isolated, Zero Crossing Detection
Rating:
Voltage: 120/240 VAC
Max. Load Current: 1 ampere @ 35°C
0.75 ampere @ 50°C
Min. Load Current: 10 mA
Off State Leakage Current: 7 mA max. @ 60 Hz
Operating Frequency: 20 to 400 Hz
Protection: Internal Transient Snubber, Fused
APPLICATION
A chemical company would like to
maintain the level of an acid solution tank to
insure constant availability for their process.
They have chosen a PCU controller which
has a continuous level probe with a 4 to 20
mA output proportional to tank level,
connected to the input terminals. The tank is
filled by controlling the position of a
proportional control valve. The control valve
is controlled by a 3 to 15 PSI air signal.
The PCU uses the level control input as its
feedback. The 4 to 20 mA input signal is
scaled so that 4 mA equals 0% and 20 mA
equals 100%.
The 4 to 20 mA output of the PCU is taken
to an I/P converter to convert the 4 to 20 mA
output to a 3 to 15 PSI signal for the control
valve. The relay outputs of the PCU are used
for high and low level alarms.

F
6031-717-767-6511
Note: Output Modules are NOT supplied with the controller. When specifying the controller, be sure to
purchase the appropriate output module for the Main Control Output and if necessary, the alarm output(s),
the secondary output, and valve positioner outputs.
The Logic/SSR Drive Module is a switched DC source, intended to drive the DC input of an SSR power unit.
It should never be connected to line voltage.
All modules are packaged separately and must be installed by the user.
DESCRIPTION PART NUMBER
Relay Module OMD00000
Triac Module OMD00001
Logic/SSR Drive Module OMD00003
SSR Power Unit RLY50000
Single Phase 40 A DIN Rail Mount Solid State Relay RLY6A000
RLY60000
Three Phase DIN Rail Mount Solid State Relay RLY70000
ORDERING INFORMATION
MODELS WITHOUT SECOND INPUT OPTIONS
0 to 10 VDC
ANALOG OUTPUT
ALARM
OUTPUTS
COOLING
OUTPUT RS485 COM PART NUMBER
NO YES NO NO NO NO PCU01000
NO YES NO 2 NO NO PCU01001
YES NO NO NO NO NO PCU10000
YES NO NO 2 NO NO PCU10001
YES NO NO 1 YES NO PCU10002
YES YES NO NO NO NO PCU11000
YES YES NO 2 NO NO PCU11001
YES YES NO 1 YES NO PCU11002
YES YES NO 2 NO YES PCU11004
YES YES NO 1 YES YES PCU11005
YES NO YES 2 NO NO PCU12001
YES NO YES 2 NO YES PCU12004
YES NO YES 1YES YES PCU12005
NEMA 4X/IP65
BEZEL
4 to 20 mA
ANALOG OUTPUT
These models have dual alarm outputs, or single alarm with secondary outputs, with shared common terminals (Form A Type). As a result,
these outputs should be fitted with the same type of output module. The main output (OP1) may be fitted with any type of output module.
These models have dual alarm outputs, or single alarm with secondary outputs, with shared common
terminals (Form A Type). As a result, these outputs should be fitted with the same type of output module.
The main output (OP1) may be fitted with any type of output module.
NEMA 4/XIP65
BEZEL
4 to 20 mA
ANALOG
OUTPUT
0 to 10 VDC
ANALOG
OUTPUT
ALARM
OUTPUTS
COOLING
OUTPUT RS485 COM PART NUMBER
YES NO NO 2 NO YES PCU10104
YES YES NO 2 NO NO PCU11108
YES NO YES 2 NO NO PCU12108
SECOND ANALOG INPUT MODELS (RSP)
MOTORIZED VALVE POSITIONER MODELS (MVP)
NEMA 4/XIP65
BEZEL
4 to 20 mA
ANALOG
OUTPUT
0 to 10 VDC
ANALOG
OUTPUT
ALARM
OUTPUTS
COOLING
OUTPUT RS485 COM PART NUMBER
YES NO NO 1 NO YES PCU10307
YES YES NO 1 NO NO PCU11306
YES NO YES 1 NO NO PCU12306
ACCESSORIES
Single Phase 25 A DIN Rail Mount Solid State Relay

F
604 www.redlion.net
SETPOINT PROGRAM CONTROLLER FOR TIME VS. PROCESS
(RAMP/SOAK) AND SPECIAL BATCH/RECIPE APPLICATIONS
ADVANCED PROGRAM PROFILING IN A 1/8 DIN PACKAGE
ON-LINE MONITORING AND CONTROL OF PROGRAM STATUS,
TIME, AND SETPOINT VALUE (Profile Run, Pause, Stop, Advance,
Modify Time, & Setpoint Value)
AUTOMATIC PROGRAM DELAY FOR PROFILE CONFORMITY,
PLUS PROGRAM LINKING, REPEATING AND AUTO POWER-ON
FUNCTIONS FOR ENHANCED CAPABILITY
DUAL EVENT OUTPUTS FOR TIMED ACTIVATION OF PROCESS
EQUIPMENT SUCH AS STIRRERS, FANS, HEATERS, ETC. (Uses
Alarm Output Channels)
FOUR SETPOINT & PID PARAMETER SETS FOR QUICK
RECALL OF SETPOINTS AND/OR GAIN VALUES DURING BATCH
OR PROCESS CHANGEOVER
PROGRAMMABLE USER INPUT FOR CONTROLLER AND
SETPOINT PROGRAM CONTROL
100 MSEC SAMPLING PERIOD WITH 0.15% ACCURACY
ON DEMAND AUTO-TUNING OF PID CONTROL SETTINGS
DUAL LED DISPLAYS FOR SIMULTANEOUS INDICATION OF
PROCESS AND SETPOINT OR PROCESS AND PROFILE STATUS
ACCEPTS EITHER 0 to 10 VDC OR 4 to 20 mA DC INPUT SIGNAL
FIELD REPLACEABLE AND INTERCHANGEABLE OUTPUT
MODULES (Relay, Logic/SSR drive, and Triac)
OPTIONAL DUAL ALARM OUTPUTS (Uses Output Modules)
OPTIONAL SECONDARY OUTPUT (Uses Output Module)
OPTIONAL LINEAR 4 to 20 mA OR 0 to 10 VDC OUTPUT FOR
CONTROL OR PROCESS RE-TRANSMISSION
OPTIONAL RS485 SERIAL COMMUNICATIONS INTERFACE
OPTIONAL NEMA 4X/IP65 SEALED FRONT BEZEL
DESCRIPTION
The PSC is a setpoint controller suitable for time vs. process control
applications. The PSC Controller accepts either a 0 to 10 VDC or a 4 to 20 mA
DC input signal, precisely scales the process signal, according to programmable
scaling points, and provides an accurate output control signal (time proportional
or linear) to maintain a process at the desired control point. A comprehensive set
of easy to use steps allows the controller to satisfy various applications. The user
input can be programmed to perform a variety of controller functions.
Dual 4-digit displays allow viewing of the measured process value and
setpoint or the process and profile status simultaneously. Front panel indicators
inform the operator of controller status and output states. Replaceable output
modules (Relay, logic/SSR drive or Triac) can be fitted to the main control
output, alarm output(s) or timed event output(s), and secondary output.
The PSC has been designed to simplify the set-up and operation of a
controlled setpoint profile program. The setpoint program is easily entered and
controlled through the front panel. Full display capabilities keep the operator
informed of the process value, profile status, output states, and setpoint value.
The controller can operate in the standard PID control mode for both Output
1 and Output 2 with on-demand auto-tune which establishes the PID gain set.
The PID gain set can be fine tuned by the operator at any time or may be locked
from further modification. The unit can be transferred to the manual control
mode providing the operator with direct control of the output.
The PSC features four programs or profile recipes, each with up to eight
ramp/soak segments, which can be easily stored and executed at any time.
Longer profiles can be achieved by linking one or more profiles together,
creating a single profile of up to 32 ramp/soak segments. Process profile
conformity is assured during either soak (hold) phases or both ramp and hold
phases by an adjustable error band parameter. The program repeat function
cycles the profile either continuously or a set number of times. Power-on options
automatically re-start, stop, or resume a running profile. The profile can be
controlled via the front panel buttons, the user input, or the optional serial
communications port.
MODEL PSC - PROCESS SETPOINT CONTROLLER
DIMENSIONS In inches (mm)
Note: Recommended minimum clearance (behind the panel) for mounting clip installation is 5.5" (140) H x 2.1" (53.4) W.
C
C
US LISTED
US LISTED
UL
R
IND. CONT. EQ.
51EB
PANEL CUT-OUT

F
6051-717-767-6511
DESCRIPTION (Cont’d)
Four control points, each having a setpoint and PID parameter set, are
available for instant front panel implementation during batch changeover, or
other process conditions. A control point may have its PID gain set values
disabled when implementing the control point.
The optional RS485 multidrop serial communications interface provides the
capability of two-way communication between a PSC unit and other compatible
equipment such as a printer, a programmable controller, or a host computer. In
multipoint applications the address number of each unit on the line can be
programmed from 0 to 99. Up to thirty-two units can be installed on a single pair
of wires. The Setpoint value, % Output Power, Setpoint Ramp Rate, etc. can be
interrogated or changed by sending the proper command code via serial
communications. Alarm output(s) may also be reset via the serial
communications interface option.
Optional alarm output(s) may be configured to operate as a timed event
output or as a standard alarm output. As an alarm output it may be configured to
activate according to a variety of actions (Absolute HI or LO, Deviation HI or
LO, or Band IN or OUT) with adjustable hysteresis. Also, a standby feature
suppresses the output(s) on power-up until the process stabilizes outside the
alarm region. Timed event output(s) allow the controller to activate other
equipment while a programmed profile is running. Each profile can define up to
16 event states (phases), for each output(s).
An optional secondary output is available for processes that require cooling
which provides increased control accuracy and response.
The optional linear 4 to 20 mA or 0 to 10 VDC output signal is available to
interface with final actuators, chart recorders, indicators, or other controllers. The
output signal can be digitally scaled and selected to transmit one of the following:
% Output Power
Measurement Value
Measurement Value Deviation
Setpoint Value
An optional NEMA 4X/IP65 rated bezel is available for washdown and/or
dirty environments, when properly installed. Modern surface-mount technology,
extensive testing, plus high immunity to noise interference, makes the controller
extremely reliable in industrial environments.
SAFETY SUMMARY
All safety related regulations, local codes and instructions that appear in the
manual or on equipment must be observed to ensure personal safety and to
prevent damage to either the instrument or equipment connected to it. If
equipment is used in a manner not specified by the manufacturer, the protection
provided by the equipment may be impaired.
Do not use the PSC to directly command motors, valves, or other actuators
not equipped with safeguards. To do so, can be potentially harmful to persons or
equipment in the event of a fault to the unit. An independent and redundant
temperature limit indicator with alarm outputs is strongly recommended. Red
Lion Controls offers various units (such as an IMP, IMD1 or IMD2) that may be
used for this purpose. The indicators should have input sensors and AC power
feeds independent from other equipment.
SPECIFICATIONS
1. DISPLAY: Dual 4-digit
Upper Process Display: 0.4" (10.2 mm) Red LED
Lower Auxiliary Display: 0.3" (7.6 mm) Green LED
Display Messages:
“OLOL” - Appears when measurement exceeds +105% of input range.
“ULUL” - Appears when measurement exceeds -5% of input range.
“SENS” - Appears when measurement exceeds “OLOL” & “ULUL”
range.
“....” - Appears when display value exceeds + display range.
“-...” - Appears when display value exceeds - display range.
2. POWER: 115/230 VAC (+10%, -15%) no observable line variation effect,
48-62 Hz, 10 VA, switch selectable.
3. ANNUNCIATORS:
6 LED Backlight Status Indicators:
%PW - Lower auxiliary display shows power output in (%).
PGM - Lower auxiliary display shows profile status or profile time
remaining.
MAN - Controller is in manual mode.
OP1 - Main control output is active.
AL1 - Alarm #1 is active.
AL2 - Alarm #2 is active (for Dual Alarm Option).
OP2 - Secondary output is active (for Secondary Option).
4. CONTROLS: Four front panel push buttons for modifying and setup of
controller functions and one external input.
5. SETPOINT PROFILE:
Profiles: 4
Segments Per Profile: 8 ramp/hold segments (linkable to 32 segments).
Ramp Rate: 0.1 to 999.9 units/minute or no ramp.
Hold Time: Off or from 0.1 to 999.9 minutes, can be extended to 500 hours
by linking.
Error Band Conformity: Off or from 1 to 9999 units deviation, + value for
hold phases, - value for both ramp and hold phases.
Power-On Modes: Stop, auto-start, or profile resume.
Start Mode: Ramps from process value.
Program Auto Cycle: 1 to 249, or continuous.
Event Outputs: 2, time activated with profile [uses Alarm output(s)].
Control: Front panel buttons, user input, or RS485 communications.
6. CONTROL POINTS:
Setpoints: 4
PID gain sets: 4
Control: Front panel buttons or user input.
7. SIGNAL INPUT:
Sample Period: 100 msec
Response Time: 300 msec (to within 99% of final value w/step input).
Signal Overdrive Threshold:
10 V Range: 13 V
20 mA Range: 26 mA
Signal Overdrive Response:
Main Control Output: Programmable preset output.
Display: “SENS”
DC Linear: Programmable preset output.
Normal Mode Rejection: 40 db @ 50/60 Hz (improves with increased
digital filtering).
Common Mode Rejection: 100 db, DC to 50/60 Hz.
8. RANGE AND ACCURACY:
9. OUTPUT MODULES (For All Output Channels):
(Optional - Must be ordered separately)
Relay:
Type: Form-C (Form-A with RS485 option)
Rating: 5 Amps @ 120/240 VAC or 28 VDC (resistive load), 1/8 HP @
120 VAC (inductive load).
Life Expectancy: 100,000 cycles at max. rating. (Decreasing load and/or
increasing cycle time, increases life expectancy).
Logic/SSR Drive: Can drive multiple SSR Power Units.
Type: Non-isolated switched DC, 12 VDC typical
Drive: 45 mA max.
Triac:
Type: Isolated, Zero Crossing Detection.
Ratings: Voltage: 120/240 VAC
Max Load Current: 1 AMP @ 35°C
0.75 AMP @ 50°C
Min Load Current: 10 mA
Off State Leakage Current: 7 mA max. @ 60 Hz
Operating Frequency: 20 to 500 Hz
Protection: Internal Transient Snubber, Fused.
10. MAIN CONTROL OUTPUT:
Control: PID or ON/OFF.
Output: Time proportioning or linear DC.
Hardware: Plug-in, replaceable output modules.
Cycle time: Programmable.
Auto-tune: When performed, sets proportional band, integral time, and
derivative time values.
Probe Break Action: Programmable.
11. SECONDARY OUTPUT (Optional):
Control: PID or ON/OFF.
Output: Time proportioning or linear DC
Hardware: Plug-in, replaceable output modules.
Cycle time: Programmable.
Proportional Gain Adjust: Programmable.
DeadBand Overlap: Programmable.
12. LINEAR DC DRIVE (Optional): With digital scale and offset,
programmable deadband and update time.
4 to 20 mA:
Resolution: 1 part in 3500 typ.
Accuracy: ±(0.1% of reading + 25 μA).
Compliance: 10 V (500 Ωmax. loop impedance).
0 to 10 VDC:
Resolution: 1 part in 3500 typ.
Accuracy: ±(0.1% of reading + 35 mV).
Min. Load Resistance: 10 K Ω(1 mA max.)
Source: % output power, setpoint, deviation, or process value.
(Available for OP1 or OP2, but not both.)
Signal Range Accuracy (% of
Unscaled Reading) Max. Input Input
Impedance Resolution
0 to 10 VDC ±(0.15% + 3 mV) 300 VDC 1M Ω10 mV
0 to 20 mADC ±(0.15% + 6 µA) 200 mADC 10 Ω10 µA

F
606 www.redlion.net
SPECIFICATIONS (Cont’d)
13. ALARMS (Optional):
Hardware: Plug-in, replaceable output module.
Modes: Absolute high acting
Absolute low acting
Deviation high acting
Deviation low acting
Inside band acting
Outside band acting
Timed event output(s)
Reset Action: Programmable; automatic or latched.
Delay: Programmable; enable or disable.
Hysteresis: Programmable.
Annunciator: LED backlight for “AL1”, “AL2”, (Alarm #2 not available
with secondary output).
14. SERIAL COMMUNICATIONS (Optional):
Type: RS485 Multi-point, Balanced Interface.
Communication Format:
Baud Rate: Programmable from 300 to 9600.
Parity: Programmable for odd, even, or no parity.
Frame: 1 start bit, 7 data bits, 1 or no parity bit, 1 stop bit.
Unit Address: Programmable from 0-99, max. of 32 units per line.
Transmit Delay: 100 msec min., 200 msec max.
RS485 Common: Isolated from signal input common.
Auto Print Time: Off to 9999 seconds between print-outs.
15. USER INPUT: VIN MAX = 5.25 VDC, VIL = 0.85 VMAX; VIH = 2.0 VMIN
Response time: 100 msec max.
Functions:
Program Lock Print Request
Integral Action Lock Load Control Point
Auto/Manual Transfer Run/Hold Profile 1
Setpoint Ramp Select Run/Stop Profile 1
Reset Alarms
16. ENVIRONMENTAL CONDITIONS:
Operating Temperature Range: 0° to 50°C
Storage Temperature Range: -40° to 80°C
Span Drift: 90 ppm/°C
Zero Drift: 0 to 10 VDC Range - 0.2 mV/°C
4 to 20 mA DC Range - 0.5 μA/°C
Relative Humidity: Less than 85% RH (non-condensing)
Altitude: Up to 2000 meters
17. CERTIFICATIONS AND COMPLIANCES:
SAFETY
UL Listed, File #E137808, UL508, CSA C22.2 No. 14-M95
LISTED by Und. Lab. Inc. to U.S. and Canadian safety standards
UL Recognized Component, File # E156876, UL873, CSA C22.2 No. 24
Recognized to U.S. and Canadian requirements under the Component
Recognition Program of Underwriters Laboratories, Inc.
Type 2 or 4X Enclosure rating (Face only), UL50
IECEE CB Scheme Test Certificate #UL1239-156876/USA,
CB Scheme Test Report #96ME50279-070794
Issued by Underwriters Laboratories, Inc.
IEC 1010-1, EN 61010-1: Safety requirements for electrical equipment
for measurement, control, and laboratory use, Part 1.
IP65 Enclosure rating (Face only), IEC 529
ELECTROMAGNETIC COMPATIBILITY:
Notes:
1. Self-recoverable loss of performance during EMI disturbance at 10 V/m:
Measurement input and/or analog output signal may deviate during
EMI disturbance.
For operation without loss of performance:
Install power line filter, RLC #LFIL0000 or equivalent.
2. Self-recoverable loss of performance during EMI disturbance at 10 Vrms:
Measurement input and/or analog output signal may deviate during
EMI disturbance.
For operation without loss of performance:
Install power line filter, RLC #LFIL0000 or equivalent.
Refer to the EMC Installation Guidelines section of the manual for additional
information.
18. CONNECTION: Jaw-type terminal block.
19. CONSTRUCTION:
Front Panel: Flame and scratch resistant tinted plastic.
Case: High impact black plastic. (Mounting collar included).
NEMA 4X/IP65 model only: Sealed bezel utilizing 2 captive mounting
screws (panel gasket included). This unit is rated for NEMA 4X/IP65 indoor
use. Installation Category II, Pollution Degree 2.
20. WEIGHT: 1.3 lbs. (0.6 kgs)
BASIC OPERATION
The PSC controls the process profile of a system by measuring the input
signal, comparing it to the setpoint value of the profile in progress, and
calculates the new output power value by use of a modified PID control
algorithm. The unit controls the system with the new output power value so the
process value conforms to the profile. The PID control algorithm incorporates
features which provide high control accuracy and low disturbance overshoot.
FRONT PANEL FEATURES
In the normal display mode, the unit will display the scaled process value in
the upper display. One of five other parameters may be selected for viewing in
the lower display:
Target setpoint
% Output Power
Profile Status
Profile phase time remaining
Blank the lower display.
The profile status display indicates the active program number with the
current ramp or hold phase of the program. The profile can be started, stopped,
advanced, etc., from the front panel when the profile status display is viewed, if
not locked from access.
The phase time remaining display, shows the time remaining in a ramp or hold
phase and, if not locked from access, may be changed on-line to effect temporary
changes to the profile. Additionally, the target setpoint and % output power
(manual mode only) may also be changed on-line or locked from operator access.
From the normal operating mode, parameters are selected by use of the PAR
button and modified by use of the UP and DOWN buttons. Parameters are then
entered by the PAR button, which advances the user to the next parameter.
Pressing the DSP button immediately returns the controller to the normal
operating mode from any parameter module. The controller configuration and
parameter settings are stored in an internal E2PROM device.
HARDWARE FEATURES
The fast 100 msec input sampling rate
provides quick controller response to a
process disturbance for excellent process
control. Measurement accuracy of 0.15%
provides closer process control conforming
to the desired control setpoint value.
The unit will accept either a 0 to 10 VDC
or a 4 to 20 mADC input signal. The A.C.
input power is switch selectable, allowing
the unit to operate from either 115 VAC or
230 VAC. Since the controller is
serviceable from the front of the panel, the
output modules may be easily changed or
replaced without disturbing the wiring
behind the panel and NO re-programming
is required. The standard model simply
requires pressing a latch to remove the unit.
The NEMA 4X/IP65 rated model utilizes
two panel securing screws and a neoprene
gasket to guarantee a water tight seal, when
properly installed.
Low-drift, highly stable circuit design ensures years of reliable and accurate
process control. The recommended two year re-calibration interval is easily
accomplished via the programming menu.
NEMA 4X/IP65 BEZEL
Power mains class A
Enclosure class AEN 55011RF interference
Emissions to EN 50081-2
150 KHz - 80 MHz
Level 3; 10 V/rms2
EN 61000-4-6RF conducted interference
Level 3; 2 Kv power
Level 4; 2 Kv I/OEN 61000-4-4Fast transients (burst)
80 MHz - 1 GHz
Level 3; 10 V/m1
EN 61000-4-3Electromagnetic RF fields
Level 3; 8 Kv air
Level 2; 4 Kv contactEN 61000-4-2Electrostatic discharge
Immunity to EN 50082-2

F
6071-717-767-6511
CONFIGURATION MODE
The configuration modules serve to provide the basic set-ups required by
the controller. It is divided into sections which group together related
programming steps, such as inputs, outputs, alarms, etc. Upon completion of
each section, the program returns to the configuration selection stage, which
allows the user to return to the normal display mode, or advance to a later
configuration stage.
Configuration 1, Inputs
“tYPE” - Select current or voltage
“dCPt” - Select scaled display decimal point position
“rnd” - Enter rounding increment and trailing zeros for scaled
display
“FLtr” - Select degree of input filtering
“dSP1” - Enter display reading for scaling point #1
“INP1” - Key-in or apply signal level for scaling point #1
“dSP2” - Enter display reading for scaling point #2
“INP2” - Key-in or apply signal level for scaling point #2
“SPLO” - Enter setpoint lower limit
“SPHI” - Enter setpoint higher limit
“SPrP” - Enter setpoint ramp rate
“InPt” - Select user input function
Configuration 2, Outputs
“CYCt” -. Enter time proportioning cycle time
“OPAC” -. Select control action
“OPLO” -. Enter output power low limit
“OPHI” -. Enter output power high limit
“OPFL” -. Enter signal overdrive power preset
“CHYS” -. Enter ON/OFF control hysteresis
“tcod” -. Select auto-tuning damping
“ANAS” -. Select linear DC output assignment *
“ANLO” -. Enter linear DC low scaling value *
“ANHI” -. Enter linear DC high scaling value *
Configuration 3, Parameter lock-outs
“SP” - Select degree of setpoint access
“OP” - Select degree of power access
“P-CS” - Select degree of profile status access
“P-tr” - Select degree of phase time remaining access
“bdSP” - Enable blank display
“CodE” - Enter parameter access code
“PId” - Select degree of PID access
“AL” - Select degree of alarm access *
“ALrS” - Enable manual reset of alarms *
“CPAC” - Enable control point access
“PrAC” - Enable ramp/hold program access
“trnF” - Enable automatic/manual transfer
“tUNE” - Enable auto-tune invocation
*These parameters may not appear due to option configuration or other
programming.
Configuration 4, Alarms *
“Act 1” - Select operation mode of alarm #1
“rSt1” - Select reset mode of alarm #1
“Stb1” - Enable activation delay of alarm #1
“AL-1” - Enter value for alarm #1
“Act2” - Select operation mode of alarm #2
“rSt2” - Select reset mode of alarm #2
“Stb2” - Enable activation delay of alarm #2
“AL-2” - Enter value for alarm #2
“AHYS” - Enter hysteresis value for both alarms
Configuration 5, Secondary Output *
“CYC2” - Enter time proportioning cycle time
“GAN2” - Enter relative gain
“db-2” - Enter deadband or overlap
Configuration 6, Serial Communications *
“bAUd” - Select baud rate
“PArb” - Select parity bit
“Addr” - Enter unit address number
“Abrv” - Select abbreviated or full mnemonic transmissions
“PrAt” - Enter automatic print rate
“PoPt” - Select parameters to be included in print-out
Configuration 7, Control Points
“CSEt” - Select control point number for set-up 1, 2, 3, & 4
“SP-x” - Enter setpoint value for selected control point
“PID” - Select if PID gain set to be loaded with setpoint
“PB-x” - Enter proportional band for selected control point *
“It-x” - Enter integral time for selected control point *
“dt-x” - Enter derivative time for selected control point *
Configuration 8, Profiles
“PSEt” - Select profile or event output for set-up 1, 2, 3, or 4
“PnCC” - Enter program-repeat cycle count for selected profile
“PnLN” - Select link option for selected profile
“PnSt” - Enter power-down resume status for selected profile
“PnEb” - Enter error band for process conformity for selected profile
“Pnr1” - Enter ramp rate 1 for selected profile *
“PnL1” - Enter setpoint level 1 for selected profile *
“PnH1” - Enter hold time 1 for selected profile *
. -
. -
“Pnr8” - Enter ramp rate 8 for selected profile *
“PnL8” - Enter setpoint level 8 for selected profile *
“PnH8” - Enter hold time 8 for selected profile *
“Pn 1” - Select event outputs at phase 1 for selected profile *
. -
. -
“Pn16” - Select event outputs at phase 16 for selected profile *
Configuration 9, Factory Service Operations
(Detailed in the operator’s manual)
SETPOINT FEATURES
The controller’s setpoint can be protected from out of range values, by
programming the setpoint range limit values. Additionally, safeguards from
inadvertent data entry can also be programmed.
The setpoint ramp feature ramps the setpoint value at start-up or any time a
setpoint change is made, at a user programmable rate, independent of a
programmed profile. This feature reduces shock to the process and also helps to
minimize overshoot.
The active setpoint, which can be a running profile, may also be transmitted
by the linear DC output for slave control loops.
Four control points are available which can be implemented at any time. Each
control point is programmed independently, with each having a setpoint and a
PID gain set value. With gain value changes, the output power control signal
will not “bump” resulting in a smooth control transition.
INPUT FEATURES
A programmable input filter can be used to stabilize readings from a process
with varying or oscillating characteristics, helping to provide better
process control.
Scaling points allow the controller to display in any engineering unit; flow,
level, pressure temperature, etc. Scaling points are used in conjunction with the
programmable rounding increment to stabilize a jittery or otherwise hard to read
process signal for better indication.
A programmable User Input is available to control a variety of controller
functions, such as profile control, auto/manual transfer, serial communication
print requests, etc.
OUTPUT FEATURES
Programmable output power limits provide protection for processes where
too much power can cause damage. Automatic signal overdrive detection can be
used to define the state of the output channels, when this situation occurs. With
adjustable time proportioning-cycle time and programmable D.C. Linear output,
the controller can satisfy a wide variety of output requirements.
During execution of a profile, two independent timed event outputs are
available to control or signal other equipment. The event outputs use the
alarm channels.
The RS485 Communication option allows the user to access various
controller parameters such as the setpoint, % output power, % proportional
band, etc. The controller may be setup to transmit various parameters at a
programmable automatic print rate.
AUTO-TUNE
The model PSC has an auto-tune feature which, on demand, automatically
determines the PID control parameters for a particular process. After completion
of auto-tune, the PID parameters are automatically optimized for that process
and loaded into nonvolatile memory. The operator may view and modify the
parameters as desired.
Auto-tune may be invoked at start-up, while ramping, or at setpoint,
depending on the process requirements. A programmable auto-tune damping
factor produces various levels of process control and response characteristics.
PROFILE PROGRAMMING
Profiles are programmed independently of each other and are separate from the
configuration of other controller parameters. Each profile has parameters for error
band (profile conformity), linking, auto-start and program repeat cycles. Profiles
may be altered during execution, so changes take effect as the profile advances.

F
608 www.redlion.net
CONTROLLER PROGRAMMING
The model PSC has been designed to reduce the operator interaction with the
controller while still maintaining a high degree of control accuracy and user
flexibility. Front panel program disable allows all of the controller’s set-ups to be
locked-out from further operator intervention after the initial parameter set-up.
The programming of the controller is divided into four sections:
Hidden Mode
Protected Mode
Unprotected Mode
Configuration Mode
These four programming modes allow the controller to adapt to any required
user-interface level.
UNPROTECTED PARAMETER MODE
The unprotected mode is accessible when program disable is inactive or when
the proper access code number from the protected mode is entered. Only from
this mode can the configuration modes be accessed.
“SP” - Enter setpoint *
“OPOF” - Enter %output power offset *
“OP” - Enter output power *
“ProP” - Enter proportional band
“Intt” - Enter integral time *
“dErt” - Enter derivative time *
“AL-1” - Enter value for alarm #1 *
“AL-2” - Enter value for alarm #2 *
“CNFP” - Select basic configuration module
“End” - Return to normal display mode
PROTECTED PARAMETER MODE *
The protected mode is accessible when program disable is active, also this
mode prevents access to the configuration modes without the proper access code
number. Only the parameters that are selected in the configuration 3 parameter
lock-outs section can be accessed.
“ProP” - Enter proportional band
“Intt” - Enter integral time
“dErt” - Enter derivative time
“AL-1” - Enter value for alarm #1
“AL-2” - Enter value for alarm #2
“CodE” - Enter access value to unprotected mode
*These parameters may not appear due to option configuration or other
programming.
HIDDEN FUNCTIONS MODE *
The hidden mode is accessible from the normal operating mode by holding
the PAR button for 3 seconds. The five functions in this mode may be locked-
out individually in configuration 3 parameter lock-outs section.
“ CP” - Invoke control point x
“Prun” - Control ramp/hold profile state
“trnF” - Transfer between automatic (PID) control and Manual control
“tUNE” - Invoke/Cancel PID auto-tune
“ALrS” - Reset latched alarms
*These parameters may not appear due to option configuration or other
programming.
OUTPUT VARIATIONS WITHOUT RS485 OPTION
The Dual Alarm or the Secondary with Alarm output, without the RS485
option, has independent outputs. Therefore, the secondary output and/or alarm
output(s) can be installed with any combination of output modules.
OUTPUT VARIATIONS WITH RS485 OPTION
The Dual Alarm or the Secondary with Alarm output, with RS485 option,
does not have independent outputs. In this case, the secondary output and/or
alarm output(s) must have the same type of output modules installed since they
share the common terminal.
OUTPUT MODULES
Units equipped with RS485 option must have the Dual Alarm or Secondary
w/alarm options fitted with the same type of output modules. The controller’s
main output (OP1) can be fitted with any output module. Output modules are
shipped separately and must be installed by the user.
TYPICAL CONNECTIONS
Relay:
Type: Form -C (Form-A with RS485 option only)
Rating: 5 Amps @ 120/240 VAC or 28 VDC (resistive load), 1/8 HP @ 120
VAC (inductive).
Life Expectancy: 100,000 cycles at maximum load rating.
(Decreasing load and/or increasing cycle time, increases life expectancy).
Logic/SSR Drive: can drive multiple SSR Power Units.
Type: Non-isolated switched DC, 12 VDC typical.
Drive: 45 mA max.
Triac:
Type: Isolated, Zero Crossing Detection.
Rating:
Voltage: 120/240 VAC.
Max. Load Current: 1 Amp @ 35°C
0.75 Amp @ 50°C
Min. Load Current: 10 mA
Off State Leakage Current: 7 mA max @ 60 Hz.
Operating Frequency: 20 to 500 Hz.
Protection: Internal Transient Snubber, Fused.

F
6091-717-767-6511
APPLICATION
A chemical treatment process requires the PH level of a solution
be ramped at staged levels over specific time periods during
start-up. The PSC unit is installed to meet this requirement.
After the tank is filled, the PSC’s user input is triggered to run
profile 1 to start the process. Alarm output 2 signals the operator
if the PH level deviates outside the running profile. The error band
(profile conformance) is programmed to the desired value to
prevent the PH level from deviating from the programmed
setpoint profile. Timed event output 1 signals that the profile
process is complete.

F
610 www.redlion.net
RLY
ORDERING INFORMATION
MODEL NO. SECONDARY
OUTPUT RS485 COM DESCRIPTION ALARM
OUTPUTS
PART
NUMBER
PSC
YES YES NO 2 NO NO PSC11001
YES YES NO 2 NO YES PSC11004
YES YES NO 1 YES YES PSC11005
YES NO YES 2 NO YES PSC12004
YES NO YES 1YES YES PSC12005
Relay Module OMD00000
Triac Module OMD00001
OMD00003
PMK5 PMK50000
These models have dual alarm outputs, or single alarm with secondary outputs, with shared common terminals (Form A Type). As a result,
these outputs should be fitted with the same type of output module. The main output (OP1) may be fitted with any type of output module.
RLY
Three Phase DIN Rail Mount Solid State Relay
Single Phase 40 A DIN Rail Mount Solid State Relay
Single Phase 25 A DIN Rail Mount Solid State Relay
SSR Power Unit
RLY70000
RLY6A000
RLY60000
RLY50000
Logic/SSR Drive Module
Panel Mount Adapter Kit (1/4 DIN to 1/8 DIN)
Process
Setpoint
Controller
0 to 10 VDC
ANALOG
OUTPUT
4 to 20 mA
ANALOG
OUTPUT
NEMA 4X/IP65
BEZEL
Note: Output Modules are NOT supplied with the controller. When specifying the controller, be sure to
purchase the appropriate output module for the Main Control Output and if necessary, the alarm output(s)
and secondary output. The controller can be fitted with any combination of output modules that do not
have the RS485 option.
The Logic/SSR Drive Module is a switched DC source, intended to drive the DC input of an SSR power
unit. It should never be connected to a line voltage.
All modules are shipped separately and must be installed by the user.

F
6111-717-767-6511
MODEL TLA - TEMPERATURE LIMIT ALARM
zFM APPROVED, UL RECOGNIZED
z2-LINE BY 4-DIGIT DISPLAY
zEXCEED, OUTPUT, AND ALARM ANNUNCIATORS
zFOUR BUTTON SILICONE RUBBER KEYPAD
zTHERMOCOUPLE OR RTD SENSOR INPUT
zREMOTE RESET INPUT
zMAIN LIMIT OUTPUT: 5A RELAY. SELECTABLE FOR HIGH OR
LOW TRIP ACTIVATION
zOPTIONAL ALARMS: 5A RELAY(S)
zOPTIONAL NEMA 4X/IP65 SEALED FRONT BEZEL
zPARAMETER SECURITY VIA PROGRAMMABLE LOCKOUTS
GENERAL DESCRIPTION
The TLA is a Factory Mutual approved temperature limit alarm, intended to
provide an independent shutdown for thermal processes. The TLA accepts
signals from a variety of temperature sensors (thermocouple or RTD elements),
and its comprehensive programming allows it to meet a wide variety of
application requirements.
Dual 4-digit displays allow viewing of the process temperature and limit
setpoint simultaneously. Front panel indicators inform the operator of the
process and output status. The main limit output and alarm outputs are field
replaceable.
The limit output is selectable for high or low trip activation. If the process
temperature goes above the limit setpoint for a high trip, or below the limit
setpoint for a low trip, the limit relay will de-energize to initiate a process
shutdown. The limit output cannot be reset until the process temperature returns
to the proper operating range; manual reset is required (local or remote). Sensor
failure will initiate a process shutdown.
Relay alarm(s) can be configured to activate according to a variety of actions
(Absolute HI or LO, Deviation HI or LO, and Band IN or OUT) with adjustable
hysteresis. A standby feature suppresses the alarm during power-up until the
process stabilizes outside the alarm region.
The unit is constructed of a lightweight, high impact plastic case with a tinted
front panel. The front panel meets NEMA 4X/IP65 specifications when properly
installed. Multiple units can be stacked horizontally or vertically. Modern
surface-mount technology, extensive testing, plus high immunity to noise
interference makes the TLA extremely reliable in industrial environments.
SAFETY SUMMARY
All safety related regulations, local codes and instructions that appear in the
manual or on equipment must be observed to ensure personal safety and to
prevent damage to either the instrument or equipment connected to it. If
equipment is used in a manner not specified by the manufacturer, the protection
provided by the equipment may be impaired.
Do not use the TLA to directly command motors, valves, or other actuators
not equipped with safeguards. To do so can be potentially harmful to persons or
equipment in the event of a fault to the unit.
DIMENSIONS In inches (mm)
FM
APPROVED
PANEL CUT-OUT
UL Recognized Component,
File # E179259
CAUTION: Risk of Danger.
Read complete instructions prior to
installation and operation of the unit.
CAUTION: Risk of electric shock.

F
612 www.redlion.net
GENERAL SPECIFICATIONS
1. DISPLAY: 2 line by 4-digit LED
Upper (Main) Display: 0.4" (10.2 mm) high red LED
Lower (Secondary) Display: 0.3" (7.6 mm) high green LED
Display Messages:
“OLOL” - Appears when measurement exceeds + sensor range.
“ULUL” - Appears when measurement exceeds - sensor range.
“OPEN” - Appears when open sensor is detected.
“SHrt” - Appears when shorted sensor is detected (RTD only)
“...” - Appears when display values exceed + display range.
“-..” - Appears when display values exceed - display range.
LED Status Annunciators:
EX - Temperature exceeds limit setpoint
OUT - Limit output is de-energized
A1 - Alarm #1 is active
A2 - Alarm #2 is active
2. POWER:
Line Voltage Models: 85 to 250 VAC, 50/60 Hz, 8 VA.
Low Voltage Models:
DC Power: 18 to 36 VDC, 7 W.
AC Power: 24 VAC +/-10%, 50/60 Hz, 9 VA
3. CONTROLS: Four rubber push buttons: R, P, Up, Down
4. MEMORY: Nonvolatile E2PROM retains all programmable parameters and
values.
5. ENVIRONMENTAL CONDITIONS:
Operating Range: FM rated @ 0 to 65°C, UL rated @ 0 to 55°C
Storage Range: -40 to 80°C
Operating and Storage Humidity: 85% max. relative humidity (non-
condensing) from 0°C to 65°C.
Altitude: Up to 2000 meters
6. ISOLATION BREAKDOWN RATINGS:
AC line with respect to all inputs and outputs: 2300 V for 1 minute (250
V working)
Relay contacts to all other inputs and outputs: 2300 VAC
DC Power with respect to sensor input: 50 V working (500 V for 1 minute)
7. CERTIFICATIONS AND COMPLIANCES:
SAFETY
Factory Mutual Approved, Report #3014646, FM 3545, FM 3810
UL Recognized Component, File #E156876, UL 873, CSA C22.2 No. 24
Recognized to U.S. and Canadian requirements under the Component
Recognition Program of Underwriters Laboratories, Inc.
Type 4X Enclosure rating (Face only), UL 50
IEC 61010-1, EN 61010-1: Safety requirements for electrical equipment for
measurement, control, and laboratory use, Part 1.
IP65 Enclosure rating (Face only), IEC 529
ELECTROMAGNETIC COMPATIBILITY
Notes:
1. Criterion A: Normal operation within specified limits.
8. CONNECTION: Wire clamping screw terminals
Wire Gage Capacity: Two 14 AWG (2.55 mm), four 18 AWG (1.02 mm), or
four 20 AWG (0.61 mm).
Terminal Torque: 1.0Nm (8.9 in-lbs.).
1.4Nm (12.4 in-lbs.) max.
9. CONSTRUCTION: Black plastic alloy case and collar style panel latch.
Panel latch can be installed for vertical or horizontal instrument stacking.
One piece tinted plastic bezel. Bezel assembly with circuit boards can be
removed from the case to change the output board without removing the case
from the panel or disconnecting wiring. Unit meets NEMA 4X/IP65
requirements for indoor use, when properly installed. Flame resistant.
Installation Category II, Pollution Degree 2.
10. WEIGHT: 0.38 lbs (0.17 kgs)
INPUT SPECIFICATIONS
1. SENSOR INPUT:
Sample Period: 100 msec
Step Response Time: Less than 300 msec typ., 400 msec max. (to within
99% of final value)
Normal Mode Rejection: Greater than 40 dB @ 50/60 Hz
Common Mode Rejection: Greater than 120 dB, DC to 60 Hz
Overvoltage Protection: Input overload 120 VAC for 15 seconds max.
2. Failed Sensor Response:
Main Output: Sensor failure will initiate a process shutdown
Display: “OPEN”
Alarms: Upscale
3. INDICATION ACCURACY: ±(0.3% of Span +1°C) at 23°C ambient after
20 minute warm-up. (Includes NIST conformity, cold junction effect, A/D
conversion errors and linearization conformity.
Span Drift (maximum): 130 PPM/°C
4. RTD INPUT: 2 or 3 wire, 100 Ωplatinum, alpha = 0.00385 (DIN 43760),
alpha = 0.0039162
Excitation: 150 μA typical
Resolution: 1 or 0.1 degree
Lead Resistance: 15 Ωmax. per input lead
5. THERMOCOUPLE INPUT:
Types: T, E, J, K, R, S, B, N, Linear mV, software selectable
Input Impedance: 20 MΩall types
Lead resistance effect: 0.25 μV/Ω
Cold junction compensation: Less than ±1°C typ., (±1.5°C max), error over
0 to 65°C max. ambient temperature range. Defeated for Linear mV
indication mode.
Resolution: 1° for all types, or 0.1° for T, E, J, K, and N onlY.
6. REMOTE RESET INPUT: Internally pulled up to +5 VDC (1MΩ).
VIL: 0.85 V max., VIH: 3.65 V min., VIN MAX: 5.25 VDC, IOFF: 1μA max.
no standardno standard-5.00 to +56.00
orange (+)
blue (-)
orange (+)
red (-)
-200 to +1300°C
-328 to +2372°F
N
no standard
grey (+)
red (-)
+149 to +1820°C
+300 to +3308°F
B
white (+)
blue (-)
black (+)
red (-)
0 to 1768°C
+32 to 3214°F
S
white (+)
blue (-)
black (+)
red (-)
0 to 1768°C
+32 to +3214°F
R
brown (+)
blue (-)
yellow (+)
red (-)
-200 to +1250°C
-328 to +2282°F
K
yellow (+)
blue (-)
white (+)
red (-)
-200 to +760°C
-328 to 1400°F
J
brown (+)
blue (-)
violet (+)
red (-)
-200 to +750°C
-328 to +1382°F
E
white (+)
blue (-)
blue (+)
red (-)
-200 to +400°C
-328 to +752°F
T
BS 1843ANSI
WIRE COLOR
mV
RANGETC TYPE
RTD TYPE RANGE
385 -200 to +600°C
-328 to +1100°F
392 -200 to +600°C
-328 to +1100°F
OHMS 2.0 to 320.0
Class AEN 55011Emissions
0.5 cycle
3 V/rms
Criterion A
Criterion A
EN 61000-4-11
EN 61000-4-6
Voltage dip/interruptions
RF conducted interference
1 kV signal
1 kV signal
2 kV power
Criterion A
Criterion A
EN 61000-4-5
EN 61000-4-4
Surge
Fast transients (burst)
10 V/m
Criterion AEN 61000-4-3Electromagnetic RF fields
Criterion AEN 61000-4-2Electrostatic discharge
8 kV air discharge
Immunity:
Emissions:
4 kV contact discharge
Emissions and Immunity to EN 61326
1 kV L-L, 2 kV
L&N-E power

F
6131-717-767-6511
OUTPUT SPECIFICATIONS
1. LIMIT AND ALARM OUTPUT RELAYS:
Contact Rating: 5 A @ 250 VAC or 30 VDC (resistive load) 1/10 HP @ 120
VAC (inductive load)
Life Expectancy: 100,000 cycles at max. load rating. (Decreasing load
increases life expectancy.)
2. LIMIT OUTPUT: TLA21000: Form-C relay; TLA11100: Form-A relay.
Selectable for high or low trip activation. If the process temperature goes
above the limit setpoint for a high trip, or below the limit setpoint for a low
trip, the limit relay will de-energize to initiate a process shutdown. The limit
output cannot be reset until the process temperature returns to the proper
operating range; manual reset is required (local or remote).
Annunciators:
“EX” - Lit when the process temperature exceeds the limit setpoint.
“OUT” - Lit when the limit output is de-energized.
3. ALARM OUTPUTS (Optional): One or two Form-A relays.
Modes:
Absolute High Acting Absolute Low Acting
Deviation High Acting Deviation Low Acting
Inside Band Acting Outside Band Acting
Reset Action: Programmable; automatic or latched. Latched alarms can be
reset regardless of limit exceed condition.
Standby Mode: Programmable; enable or disable.
Hysteresis: Programmable.
Annunciator: “A1” and “A2” programmable for normal or reverse acting.
Although this unit is designed with a high degree of immunity to Electro
Magnetic Interference (EMI), proper installation and wiring methods must be
followed to ensure compatibility in each application. The type of the electrical
noise, source or coupling method into the unit may be different for various
installations. Listed below are some EMC guidelines for successful installation
in an industrial environment.
1. The unit should be mounted in a metal enclosure, which is properly connected
to protective earth.
2. Use shielded (screened) cables for all Signal and Control inputs. The shield
(screen) pigtail connection should be made as short as possible. The
connection point for the shield depends somewhat upon the application.
Listed below are the recommended methods of connecting the shield, in order
of their effectiveness.
a. Connect the shield only at the panel where the unit is mounted to earth
ground (protective earth).
b. Connect the shield to earth ground at both ends of the cable, usually when
the noise source frequency is above 1 MHz.
c. Connect the shield to common of the unit and leave the other end of the
shield unconnected and insulated from earth ground.
3. Never run Signal or Control cables in the same conduit or raceway with AC
power lines, conductors feeding motors, solenoids, SCR controls, and
heaters, etc. The cables should be run in metal conduit that is properly
grounded. This is especially useful in applications where cable runs are long
and portable two-way radios are used in close proximity or if the installation
is near a commercial radio transmitter.
4. Signal or Control cables within an enclosure should be routed as far away as
possible from contactors, control relays, transformers, and other noisy
components.
5. In very electrically noisy environments, the use of external EMI suppression
devices, such as ferrite suppression cores, is effective. Install them on Signal
and Control cables as close to the unit as possible. Loop the cable through the
core several times or use multiple cores on each cable for additional
protection. Install line filters on the power input cable to the unit to suppress
power line interference. Install them near the power entry point of the
enclosure.
The following EMI suppression devices (or equivalent) are recommended:
Ferrite Suppression Cores for signal and control cables:
Fair-Rite # 0443167251 (RLC #FCOR0000)
TDK # ZCAT3035-1330A
Steward #28B2029-0A0
Line Filters for input power cables:
Schaffner # FN610-1/07 (RLC #LFIL0000)
Schaffner # FN670-1.8/07
Corcom #1VR3
Note: Reference manufacturer’s instructions when installing a line filter.
6. Long cable runs are more susceptible to EMI pickup than short cable runs.
Therefore, keep cable runs as short as possible.
7. Switching of inductive loads produces high EMI. Use of snubbers across
inductive loads suppresses EMI.
Snubbers:
RLC #SNUB0000
EMC INSTALLATION GUIDELINES
RBD48111
RBDLA210
REPLACEMENT
OUTPUT BOARD
TLA11100Form-A RelayForm-A RelayForm-A Relay
TLA21000Form-A RelayForm-C Relay
PART NUMBERSALARM 2 OUTPUTALARM 1 OUTPUTLIMIT OUTPUT
18 to 36 VDC / 24 VAC
85 to 250 VAC
RBD48111
RBDLA210
REPLACEMENT
OUTPUT BOARD
TLA11110Form-A RelayForm-A RelayForm-A Relay
TLA21010Form-A RelayForm-C Relay
PART NUMBERSALARM 2 OUTPUTALARM 1 OUTPUTLIMIT OUTPUT
ORDERING INFORMATION

F
614 www.redlion.net
The TLA meets NEMA 4X/IP65 requirements for indoor use to provide a
watertight seal in steel panels with a minimum thickness of 0.09 inch, or
aluminum panels with a minimum thickness of 0.12 inch. The units are intended
to be mounted into an enclosed panel. It is designed so that the units can be
stacked horizontally or vertically. The bezel assembly MUST be in place during
installation of the unit.
Instructions:
1. Prepare the panel cutout to the dimensions.
2. Remove the panel latch from the unit. Discard the cardboard sleeve.
3. Carefully remove the center section of the panel gasket and discard. Slide
the panel gasket over the unit from the rear, seating it against the lip at the
front of the case.
4. Insert the unit into the panel cutout. While holding the unit in place, push the
panel latch over the rear of the unit, engaging the tabs of the panel latch in
the farthest forward slot possible.
5. To achieve a proper seal, tighten the panel
latch screws evenly until the unit is snug in
the panel, torquing the screws to
approximately 7 in-lbs (79 N-cm). Over
tightening can result in distortion of the panel,
and reduce the effectiveness of the seal.
Note: The installation location of the TLA is
important. Be sure to keep it away from heat
sources (ovens, furnaces, etc.), and away from
direct contact with caustic vapors, oils, steam,
or any other process byproducts in which
exposure may affect proper operation.
Multiple Unit Stacking
The TLA is designed for close spacing of multiple units. Units can be stacked
either horizontally or vertically. For vertical stacking, install the panel latch with
the screws to the sides of the unit. For horizontal stacking, the panel latch
screws should be at the top and bottom of the unit. The minimum spacing from
center line to center line of units is 1.96" (49.8 mm). This spacing is the same
for vertical or horizontal stacking.
Note: When stacking units, provide adequate panel ventilation to ensure that
the maximum operating temperature range is not exceeded.
Caution: Disconnect power to the unit and to the output control circuits
to eliminate the potential shock hazard when removing the bezel
assembly.
Unit Removal Procedure
To remove a unit from the panel, first loosen the panel latch screws. Insert
flat blade screwdrivers between the latch and the case on either side of the unit,
so that the latches disengage from the grooves in the case. Push the unit through
the panel from the rear.
Removing Bezel Assembly
The bezel assembly must be removed from the case to replace the output
board. To remove the bezel assembly, insert a flat blade screwdriver into the pry
slot on either side of the unit. Twist the screwdriver handle until the unit is
ejected enough to allow removal.
Caution: The bezel assembly contains electronic circuits that can be damaged
by static electricity. Before removing the assembly, discharge static charge on
your body by touching an earth ground point. It is also important that the
bezel assembly be handled only by the bezel itself. Additionally, if it is
necessary to handle a circuit board, be certain that hands are free from dirt,
oil, etc., to avoid circuit contamination that may lead to malfunction. If it
becomes necessary to ship the unit for repairs, place the unit in its case
before shipping.
Installing Bezel Assembly
To install the bezel assembly, insert the assembly into the case until the bezel
is fully seated against the lip of the case. Properly installing the bezel assembly
is necessary for watertight sealing.
1.0 INSTALLING THE TLA

F
6151-717-767-6511
2.0 WIRING THE TLA
After the unit has been mechanically mounted, it is ready to be wired. All
wiring connections are made to the rear screw terminals. When wiring the unit,
use the numbers on the label and those embossed on the back of the case, to
identify the position number with the proper function.
All conductors should meet voltage and current ratings for each terminal.
Also cabling should conform to appropriate standards of good installation, local
codes and regulations. It is recommended that power supplied to the unit (AC
or DC) be protected by a fuse or circuit breaker. Strip the wire, leaving
approximately 1/4" (6 mm) bare wire exposed (stranded wires should be tinned
with solder). Insert the wire under the clamping washer and tighten the screw
until the wire is clamped tightly.
Caution: Unused terminals are NOT to be used as tie points. Damage to the
TLA may result if these terminals are used.
POWER WIRING
AC Power
Primary AC power is connected to terminals #11 and #12, labeled AC. To
reduce the chance of noise spikes entering the AC line and affecting the TLA,
an AC feed separate from that of the load should be used to power the TLA. Be
certain that the AC power to the TLA is relatively “clean” and within the
variation limit. Connecting power from heavily loaded circuits or circuits that
also power loads that cycle on and off (contacts, relays, motors, etc.), should be
avoided.
DC Power
DC Power (18 to 36 VDC) is connected to terminals #11 and #12 labeled
DC+ and DC- respectively.
CAUTION: Observe proper polarity when connecting DC voltages.
Damage to the unit may occur if polarity is reversed.
SIGNAL WIRING
Thermocouple
When connecting the thermocouple, be certain that the connections are clean
and tight. If the thermocouple probe cannot be connected directly to the TLA,
thermocouple wire or thermocouple extension-grade wire must be used to
extend the connection points (copper wire does not work). Always refer to the
thermocouple manufacturer’s recommendations for mounting, temperature
range, shielding, etc. For multi-probe temperature averaging applications, two
or more thermocouple probes may be connected to the TLA (always use the
same type). Paralleling a single thermocouple to more than one TLA is not
recommended. Generally, the red wire from the thermocouple is negative and
connected to the TLA’s common.
RTD
When connecting the RTD, be certain that the connections are clean and
tight. RTD sensors have a higher degree of accuracy and stability than
thermocouple sensors. Most RTD sensors available are the three wire type. The
third wire is a sense lead for canceling the effects of lead resistance of the probe.
Four wire RTD elements may be used by leaving one of the sense leads
disconnected. Two wire RTD sensors may be used in either of two ways:
A) Attach the RTD to terminals #8 and #10. Install a copper sense wire of the
same wire gauge as the RTD leads. Attach one end of the wire at the probe
and the other end to terminal #9. Complete lead wire compensation is
obtained. This is the preferred method.
B) Attach the RTD to terminals #8 and #10. Install a shorting wire between
terminals #9 and #10. A temperature offset error of 2.5°C/ohm of lead
resistance exists. The error may be compensated by programming a
temperature offset.
Note: With extended cable runs, be sure the lead resistance is less than 15
ohms/lead.
RELAY CONNECTIONS
To prolong contact life and suppress electrical noise interference due to the
switching of inductive loads, it is good installation practice to install a snubber
across the contactor. Follow the manufacturer's instructions for installation.
Note: Snubber leakage current can cause some electromechanical devices to be
held ON.
*Terminal numbers are model dependent. See Terminal Configurations for
description.
REMOTE RESET WIRING
The use of shielded cable is recommended. Follow the EMC installation
guidelines for shield connection.
Terminal #6 is the Remote Reset. Any form of mechanical switch may be
connected to terminal #6 (REMOTE RESET) and terminal #8 (COMM.).
Sinking open collector logic with less than 0.7 V saturation and off-state leakage
current of less than 1 μA may also be used.
Thermocouple Connection
RTD Connection

F
616 www.redlion.net
3.0 FRONT PANEL DESCRIPTION
The front panel bezel material is flame and scratch resistant, tinted plastic that
meets NEMA 4X/IP65 requirements, when properly installed. Continuous
exposure to direct sunlight may accelerate the aging process of the bezel. The
bezel should be cleaned only with a soft cloth and neutral soap product. Do NOT
use solvents. There are two 4-digit LED displays, a red upper Main Display and
a lower green Secondary Display.
There are up to four panel annunciators, with red backlighting, that illuminate
to inform the operator of the TLA and output status. See the front panel diagram
for a description of the annunciators. Four front panel buttons are used to access
different modes and parameters. The following is a description of each button.
Do NOT use tools of any kind (screwdrivers, pens, pencils, etc) to operate the
keypad of this unit.
Button Functions
R - The Reset (R) button is used to reset the limit and alarm relays. The limit output
cannot be reset until the process temperature returns to the proper operating
range. Latched alarms can be reset regardless of limit exceed condition.
P - The Parameter (P) button is used to access programming, enter the change,
and scroll through the available parameters in any mode.
UP, DN - The Up/Down buttons are used to modify parameters.
TLA POWER-UP
Upon applying power, the TLA delays input indication and control action for
five seconds to perform several self-diagnostic tests and to display basic TLA
information. Initially, the TLA illuminates both displays and all annunciators to
verify that all display elements are functioning. The TLA then displays the
programmed input sensor type in the main (top) display and the revision number
of the TLA’s operating system in the secondary (bottom) display. The TLA
checks for correct internal operation and displays an error message (E-xx) if an
internal fault is detected. (See the Troubleshooting section for further
information.)
Upon completion of this sequence, the TLA begins displaying the input value
and setpoint, and updates the outputs based upon this condition.
TLA CONFIGURATION OVERVIEW
The TLA is programmed with certain parameter settings from the factory.
Factory settings are listed in parentheses in the various Configuration of
Parameters tables. In many cases, these settings must be changed to the
particulars of the application before proper operation can be started.
The TLA is typically in the Normal Display Mode. In this mode, the process
temperature is displayed in the main (top) display, and the limit setpoint is
displayed in the secondary (bottom) display. When changes to the parameter
configurations are needed, the P button is pressed, and the TLA will enter into
the Parameter Mode.
PARAMETER CONFIGURATION BASIC STARTUP
For basic start-up, it is important to verify or change Input Parameter Module
(1-IN) parameters tYPE and SCAL, and Output Parameter Module (2-OP)
parameter LiAC (Limit Trip Action). For alarm set-up, it is important to verify
or change Alarms Parameter Module (4-AL) parameters ACt1, AL-1, ACt2, and
AL-2.
If the above Input parameters or the input wiring connections are not correct,
then the main (top) display may display an error message or incorrect value.
Verify the input programming and wiring. (If incorrect display continues, refer
to the Troubleshooting section.) All other parameter configurations are
important but will not prevent the TLA from showing a correct display.
4.0 PARAMETER MODE
The Parameter Mode is accessed by pressing the P Button from the Normal
Display Mode. While in the Parameter Mode, the temperature is displayed in the
main (top) display, and the parameter is displayed in the secondary (bottom)
display. The correct password must be entered before any parameters can be
accessed. To modify values, use the UP or DOWN button while the parameter is
displayed. Use the P button to accept the new value, and to scroll through the
parameters. The TLA will automatically return to the normal display mode if no
action is taken. The TLA responds to the new values immediately, but the change
is not committed to non-volatile memory until the TLA is returned to the Normal
Display Mode. If power loss occurs before returning to the normal display mode,
the new values must be re-entered.
To gain access to the Configuration Parameter Modules continue to CNFP
and press the UP button. These modules allow access to the fundamental set-up
parameters of the TLA. If the setpoint or alarm values are modified, the CNFP
step will be skipped.
DISPLAY PARAMETER RANGE DESCRIPTION
PASS Password to access parameters 0 to 250 If an incorrect value is entered, the TLA will display “End”
momentarily, and then return to the normal display mode. The
default password is 10. The wildcard password is 222 (in case the
password is forgotten).
SP Limit setpoint -999 to 9999 Range limited by SPLO & SPHI.
AL-1 * Alarm #1 -999 to 9999 The Alarm parameters can be independently locked out from
appearing. See Configuration Module 3, Parameter Lock-outs.
AL-2 * Alarm #2 -999 to 9999
CNFP Configuration parameter modules “Up” button: enter
configuration modules.
End End of Parameter Mode When the parameter list has been scrolled through, the TLA
will display “End” momentarily, and then return to the normal
display mode.
Parameter Mode Reference Table
These modules allow access to the fundamental set-up parameters
of the TLA. The modules are grouped into related
programming steps, such as inputs, outputs, alarms, etc. Upon
completion of each module, the program returns to “CNFP”.
* Model Number Dependent.

F
6171-717-767-6511
CONFIGURATION PARAMETER MODULES
The Configuration Parameter modules are accessed by pressing the UP button
from CNFP in the Parameter Mode. The UP or DOWN buttons can be pressed to
move to the desired Parameter Module. The P button is then pressed to enter into
that module. The main (top) display will be the parameter, and the secondary
(bottom) display will be the parameter value. The UP or DOWN buttons are used
to modify the desired parameter value, and the P button enters the new value, and
moves to the next parameter. The TLA responds to the new values after the P
button is pressed, however, the change is not committed to permanent memory
until the TLA is returned to the Normal Display Mode. If power loss occurs before
returning to the Normal Display Mode, the new values must be entered again. At
the end of each module, the TLA will go back to CNFP. Other Parameter Modules
can be accessed by pressing the UP or DOWN buttons, or pressing P will return
to the Normal Display Mode.
Parameters that are model number, or program dependent will only be
displayed when the appropriate options are installed or programmed.
CONFIGURE MODULE 1 - INPUT PARAMETERS (1-IN)
DISPLAY PARAMETER RANGE
(FACTORY SETTING) DESCRIPTION/ COMMENTS
tYPE Input Type tc-t - Type T TC
tc-E - Type E TC
tc-J - Type J TC
tc-K - Type K TC
tc-r - Type R TC
tc-S - Type S TC
tc-b - Type B TC
tc-N - Type N TC
LIN - Linear mV
r385 - 385 curve RTD
r392 - 392 curve RTD
rLIN - Linear ohms
(tc-J)
Select from the list of various thermocouple and RTD sensors.
SCAL Temperature Scale °F or °C
(°F)
Select either degrees Fahrenheit (F) or degrees Celsius (C). If
changed, be sure to check all parameters.
dCPt Temperature Resolution 0 or 0.0
(0)
Select either 1 or 0.1 degree resolution. If changed, be sure to
check all parameters.
FLtr Digital Input Filtering and
Display Update
Select the relative degree of input signal filtering and display update
rate. The filter is an adaptive digital filter that discriminates between
measurement noise and actual process changes. Therefore, the
influence on step response time is minimal. If the signal is varying
too greatly due to measurement noise, increase the filter value.
Conversely, if the fastest TLA response is desired, decrease the
filter value.
SHFt Input Signal Shift
(correction offset)
-999 to 9999
1 or 0.1 degree
(0)
If the TLA temperature disagrees with a reference temperature
instrument or if the temperature sensor has a known calibration, the
TLA temperature can be compensated by a correction offset. The
following equation expresses the relationship: Desired Display Temp
= (TLA Temp) + SHFt. Normally set to 0.
SPLO Limit Setpoint Lower Limit -999 to 9999
1 or 0.1 degree
(0)
The TLA has programmable high and low setpoint limit values to
restrict the setting range of the limit setpoint. Set the limit values so
that the temperature setpoint value cannot be set outside the safe
operating area of the process. SPHI must be above SPLO.
SPHI Limit Setpoint Upper Limit -999 to 9999
1 or 0.1 degree
(9999)
CONFIGURE MODULE 2 - OUTPUT PARAMETERS (2-OP)
DISPLAY PARAMETER RANGE
(FACTORY SETTING) DESCRIPTION/ COMMENTS
LiAc Limit Output Trip Action LO - Low Acting
HI - High Acting
(HI)
The limit output is selectable for high or low trip activation. If the
process temperature goes above the limit setpoint for a high trip, or
below the limit setpoint for a low trip, the limit relay will de-energize
to initiate a process shutdown. See the Limit Output Action section
for details.
0 to 4
0 - least input filtering
3 - most input filtering
4 - most input filtering and slower 500
msec display update rate (outputs still
update at 100 msec rate)
(1)

F
618 www.redlion.net
CONFIGURE MODULE 3 - LOCKOUT PARAMETERS (3-LC)
DISPLAY PARAMETER DESCRIPTION/ COMMENTS
PASS Password 0 to 250
(10)
AL * Alarms #1 and #2 access
level
The alarm(s) parameter in the Parameter Mode can be configured to be
completely locked out, read only, or fully accessible.
FPrS Front panel reset NO - disabled
YES - active
(YES)
The front panel R button can be enabled or disabled. The Remote Reset
input is not affected by this setting.
The password is required to access all parameters. The password can be
set to any value between 0 and 250. A wildcard password, 222, can be
used as an alternative to the programmed password.
* Model Number Dependent.
CONFIGURE MODULE 4 - ALARMS PARAMETERS (4-AL)
RANGE
(FACTORY SETTING)
DISPLAY PARAMETER RANGE
(FACTORY SETTING) DESCRIPTION/ COMMENTS
Act1 Alarm 1 action mode A-HI - absolute high
A-LO - absolute low
d-HI - deviation high
d-LO - deviation low
b-IN - band inside
b-Ot - band outside
(A-HI)
rSt1 Alarm 1 reset mode Auto - automatic
LATC - manual reset
(Auto)
Stb1 Alarm 1 standby function
(delay)
NO or YES
(NO)
AL-1 Alarm 1 value -999 to 9999
(0)
Act2 * Alarm 2 action mode The Alarm 2 parameters are programmed independently of alarm 1. See the
corresponding Alarm 1 parameter for description.
rSt2 * Alarm 2 reset mode Auto - automatic
LATC - manual reset
(Auto)
Stb2 * Alarm 2 standby function
(delay)
NO or YES
(NO)
AL-2 * Alarm 2 value -999 to 9999
(0)
AHYS Alarm hysteresis value 1 to 250
(1)
Automatic reset alarms are reset by the TLA when the alarm condition clears.
Latched alarms require operator action to reset the alarm condition. The front
panel R button, if enabled, can be used to reset a latched alarm (see FPrS in
Configure Module 3). A latched alarm condition may also be reset via the
Remote Reset input. See the Reset Action diagram in the Alarms section.
When deviation low-acting with positive alarm value (d-LO), deviation high-
acting with negative value (d-HI), or band inside-acting (b-IN) is selected for the
alarm action, the indicator is OFF when the alarm output is ON. See the Alarms
section for complete details of each action. If changed, check alarm values.
The alarm values are either absolute values, or relative to the limit setpoint value
(deviation and band alarms). An absolute alarm value is the value that is entered
for the alarm. A relative alarm value is the mathematical sum of the temperature
limit setpoint value and the alarm value (positive or negative), thus a relative
alarm tracks the limit setpoint value as it is changed. If the alarm action is set as a
Band Alarm, then only a positive alarm value can be entered.
The alarm value(s) have a programmable hysteresis band to prevent alarm
output chatter near the alarm trigger point. The hysteresis value should be set
to eliminate this effect. A value of 2 to 5 is usually sufficient for most
applications. A single alarm hysteresis value applies to both alarms. See the
Alarm Action Figures, in the Alarms section, for the effect of hysteresis on the
various alarm types.
A-HI - absolute high
A-LO - absolute low
d-HI - deviation high
d-LO - deviation low
b-IN - band inside
b-Ot - band outside
(A-HI)
The alarm(s) may be independently configured to exhibit a power-on, standby
delay which suppresses the alarm output from turning ON until the temperature
first stabilizes outside the alarm region. After this condition is satisfied, the alarm
standby delay is canceled and the alarm triggers normally, until the next TLA
power-on. This feature also works for deviation and band alarms when the
setpoint is changed via keypad. This action suppresses “nuisance” alarms. See
the Alarm Standby diagram in the Alarms section.
* Model Number Dependent.
LOC - lockout, prevents the alarms from
appearing
rEd - read only, alarms appear, but cannot
be modified
Ent - enter, alarms appear, and can be
modified
(Ent)

F
6191-717-767-6511
CONFIGURE MODULE 9 - FACTORY SERVICE OPERATIONS (9-FS)
DISPLAY PARAMETER RANGE DESCRIPTION/ COMMENTS
CodE Factory service function
code
48 - Calibrate instrument TLA calibration. Refer to the Calibration section for details.
66 - Reset parameters to factory
settings
Entering code 66 restores all parameters to factory settings. The
unit indicates the operation after the P button is pressed, by
displaying “rSEt” in the lower display momentarily.
77 (twice in succession) -
Reset TLA calibration to nominal
values
Caution: this operation erases the TLA calibration values and
defaults the values to nominal settings. Reading errors of ±10%
may result. Do not perform this operation unless the TLA has lost
calibration. Loss of calibration is signaled by an “E-CL” error
flag at power-up. To clear this flag, perform calibration procedure
as noted in the Calibration section. Alternatively, “stepping” through
one of the calibration procedures clears the error flag, but does NOT
validate the calibration accuracy in any manner.
USER PARAMETER VALUE CHART
TLA Number _____________
MNEMONIC PARAMETER USER SETTING
sp
AL-2
pass
aL-1
Limit Setpoint
Alarm 2 Value
Password
Alarm 1 Value
1-IN Input Parameters
MNEMONIC PARAMETER USER SETTING
SCAL
SPLO
FLtr
tYPE
SHFt
SPHI
dCPt
Temperature Scale Units
Limit Setpoint Lower Limit
Digital Filtering
Input Sensor Type
Input Offset
Limit Setpoint Upper Limit
Temperature Resolution
2-OP Output Parameters
MNEMONIC PARAMETER USER SETTING
LiAc Limit Output Trip Action
3-LC Lockout Parameters
MNEMONIC PARAMETER USER SETTING
AL
FPrS
PASS
Alarm(s) Access Level
Front Panel Reset
Password
4-AL Configure Alarm Parameters
MNEMONIC PARAMETER USER SETTING
rst1
rst2
aL-2
aL-1
aHYS
Act1
Act2
stb2
stb1
Alarm 1 Reset Mode
Alarm 2 Reset Mode
Alarm 2 Value
Alarm 1 Value
Alarm Hysteresis Value
Alarm 1 Action Mode
Alarm 2 Action Mode
Alarm 2 Standby Enabled
Alarm 1 Standby Enabled

F
620 www.redlion.net
LIMIT OUTPUT ACTION
The limit output is selectable for high or low trip activation. If the process
temperature goes above the limit setpoint for a high trip, or below the limit
setpoint for a low trip, the limit relay will de-energize to initiate a process
shutdown. The limit output cannot be reset until the process temperature returns
to the proper operating range; manual reset is required. The following action
figures describe the status of the limit output and the front panel indicators for
various over/under setpoint, and reset conditions. Reset is either by the front
panel R button, if enabled, or by the Remote Reset input, terminal #6. Refer to
Configure Module 2 - Output Parameters for details of configuring the limit
output. Refer to Configure Module 3 - Lockout Parameters for details of
configuring the front panel Reset button.
High Trip Action
Low Trip Action
5.0 ALARMS (OPTIONAL)
The alarm action figures describe the status of the alarm output and the front
panel indicator for various over/under temperature conditions. The alarm output
wave form is shown with the output in the automatic reset mode. Select the
alarm action with care -- in some configurations, the front panel indicator (LED)
might be OFF while the output is ON. Refer to Configure Module 4 - Alarm
Parameters for details of configuring the alarms.

F
6211-717-767-6511
Alarm Reset Sequence Alarm Standby Delay Sequence
CALIBRATION CHECKS
The instrument has been fully calibrated at the factory for all input types. If
the unit appears to be indicating or controlling incorrectly, see the
Troubleshooting section before attempting this procedure.
If the TLA is suspected of reading incorrectly, the instrument may be checked
for indication accuracy without disturbing the factory calibration. The following
procedures may be used for this purpose.
Note: Allow ½ hour warm-up before checking these parameters.
mV Reading Check
1. Connect a DC mV source with an accuracy of 0.03% or better to terminal #8
(-) & #9 (+).
2. Configure Input Parameters Module 1 for linear mV (Lin) input, under tYPE.
3. Compare the TLA read-out to the standard at various points over the range (-
5.00 mV to 56.00 mV). The tolerance is ±(0.15% of reading + 1 LSD).
4. Calibrate the TLA if the readings are out of tolerance.
Thermocouple Cold Junction Temperature Check
1. Connect a thermocouple probe of known accuracy (Types T, E, J, K, N only)
to TLA. Select the probe used in Configure Module 1.
2. Connect a reference temperature probe to measuring end of thermocouple to
monitor temperature. Allow sufficient time for temperatures to equalize.
3. Compare TLA display with reference temperature probe. The TLA display
should equal the calibrated probe temperature. (Tolerance is ±1ºC.)
4. Calibrate the cold junction temperature if out of tolerance.
RTD Ohms Reading Check
1. Connect RTD simulator (with an accuracy of 0.1 ohm or better) capable of
operating with less than 150 μA to terminals #8, #9, & #10.
2. Configure Input Parameters Module 1 for linear ohms (rLin) input, under tYPE.
3. Compare the TLA read-out with the RTD simulator at various points over the
range 2.0 to 300.0 ohms. The tolerance is ±(0.3% of span + 1 LSD).
4. Calibrate the TLA RTD ohms if out of tolerance.
Error Flag E-CL
If error flag “E-CL” appears at power-up, a loss of calibration parameters due
to noise spikes has occurred. Entering code 77 twice in Factory Service
Operations Module (9-FS) erases the TLA calibration values and defaults the
values to nominal settings. Reading errors of ±10% may result. It is
recommended that the TLA be fully recalibrated. If using thermocouple only,
the RTD calibration need not be performed.
Note: the “E-CL” flag may be cleared by “stepping” through cold junction
calibration procedure without the need to change any calibration values. A
±10% reading error will still exist.

F
622 www.redlion.net
Millivolt Calibration (CAL)
Connect precision millivolt source with an accuracy of 0.03% to terminals #8
(-) & #9 (+). Cold Junction or RTD ohms calibration MUST be performed after
millivolt calibration.
Thermocouple Cold Junction Calibration (CJC)
This procedure must be performed AFTER an accurate mV calibration.
1. Exit Factory Service Operations (continually press P until “End”), and return
to Normal Display Mode.
2. Connect a thermocouple probe of known accuracy to the TLA (Types T, E, J,
K, and N only). Select the probe type used in Configure Module 1.
3. Connect a reference temperature probe to the measuring end of the TLA
thermocouple probe. The two probes should be shielded from air movement
and allowed sufficient time to equalize in temperature. (As an alternative, the
TLA thermocouple probe may be placed in a calibration bath of known
temperature.)
4. Compare TLA display with reference temperature probe (or calibration bath).
If the displayed TLA temperature does not equal the reference probe
temperature, calculate the CJ error as follows:
CJ Error = reference probe temperature - displayed TLA temperature
5. Enter Factory Service Operations Module (9-FS).
RTD Ohms Calibration (RTD)
This procedure must be performed AFTER an accurate mV calibration.
Connect one leg of precision resistance (accuracy of 0.1 ohm) to terminals #9
and #10 together, and the other leg to #8.
6.0 CALIBRATION
When re-calibration is required (generally every two years), this procedure
should be performed by qualified technicians using appropriate equipment.
Equipment source accuracy of 0.03% or better is required.
The procedure consists of: applying accurate mV signals, setting the
thermocouple cold junction temperature, and applying precision resistance,
among others. Allow a 30 minute warm-up period before starting this procedure.
Do not use thermocouple wire for the millivolt or RTD ohms calibration.
This procedure may be aborted by disconnecting power to the TLA before
exiting the configuration mode. The existing calibration settings remain in
affect.
Note: After completing any of the calibration sequences, the TLA defaults the
input sensor type to thermocouple type “J” (tc-J). Be sure to set input sensor
for proper type.
Note: The TLA must be restored to normal display mode before any data is
stored.
Not required if only using TC input. This procedure can only be performed
AFTER an accurate mV calibration.
yes/noRTD resistance calibrationrtd
Not required if only using RTD input. This procedure can only be performed
AFTER an accurate mV calibration.
yes/no
Thermocouple cold junction
temperature calibration
CJC
Calibration required for both RTD and TC input. If this procedure is performed,
the cold junction temp or RTD ohms calibration procedures in turn must be
completed.
Calibrate instrument.
yes/no
48
Millivolt calibration
Enter function code
CAL
CodE
DESCRIPTION/ COMMENTSRANGEPARAMETERDISPLAY
Factory Service Operations - Calibration (9-FS)
Wait 10 seconds, press P.Apply 14.0 mV
Wait 10 seconds, press P.
Wait 10 seconds, press P.
Apply 56.0 mV
Apply 42.0 mV
StP5
StP4
StP2
Wait 10 seconds, press P.Apply 28.0 mVStP3
Apply 0.0 mVStP1
DESCRIPTION/ COMMENTSACTIONDISPLAY
Wait 10 seconds, press P.
Cold Junction
Temperature
CJC
DESCRIPTION/ COMMENTSPARAMETERDISPLAY
Note: If the initial value for CJC is not within
the range of 15°C to 40°C, enter 25.0° for
CJC and repeat the Cold Junction Calibration
procedure.
Observe the indicated cold junction
temperature. Add the calculated CJ Error to
the displayed value. Enter the sum as the new
value for CJC. Exit 9-FS and repeat step 4.
Wait 10 seconds, press P.Rtd2
Wait 10 seconds, press P.Rtd1
DESCRIPTION/ COMMENTSACTIONDISPLAY
Connect 0.0 ohm
(jumper wire)
Connect 277.0 ohm

F
6231-717-767-6511
PROBLEMS POSSIBLE CAUSE REMEDIES
1. Check power.
2. Verify power reading.
3. Check connections.
4. Check installation.
TLA NOT WORKING 1. Incorrect parameter set-up. 1. Check set-up parameters.
“E-FP” IN DISPLAY 1. Defective front panel button. 1. Press R to escape, then check all buttons for proper operation.
2. Replace unit.
“E-UP” IN DISPLAY 1. Internal problem with TLA. 1. Replace unit.
“E-E2” IN DISPLAY 1. Loss of setup parameters due to noise spike or
other EMI event.
“E-CL” IN DISPLAY 1. Loss of calibration parameters due to noise
spike or other EMI event.
1. Press R to escape, then check TLA accuracy.
a. Recalibrate TLA. (See Factory Service Module code 77.)
b. Reset parameters to factory default settings.
1. Display value exceeds display range.
2. Defective or mis-calibrated cold junction circuit.
3. Loss of set-up parameters.
4. Internal malfunction.
1. Change resolution to display whole number and verify reading.
2. Perform cold junction calibration.
3. Check set-up parameters.
4. Perform Input calibration.
“OPEN” IN DISPLAY 1. Probe disconnected.
2. Broken or burned-out probe.
3. Corroded or broken terminations.
4. Excessive process temperature.
1. Connect probe.
2. Replace probe.
3. Check connections.
4. Check process parameters.
“OLOL” IN UPPER DISPLAY
“ULUL” IN UPPER DISPLAY 1. Input is below range of TLA.
2. Temperature below range of input probe.
3. Defective or incorrect transmitter or probe.
4. Excessive low temperature for probe.
5. Loss of setup parameters.
“OLOL” OR “ULUL” IN LOWER
DISPLAY
1. Signal input exceeds allowable range by 5%. 1. Check remote signal source.
1. Check input parameters.
2. Change to input sensor with a lower temperature range.
3. Replace transmitter or probe.
4. Raise temperature.
5. Perform input calibration.
The majority of problems can be traced to improper connections or incorrect
set-up parameters. Be sure all connections are clean and tight, that the correct
output board is fitted, and that the set-up parameters are correct.
For further technical assistance, contact technical support at the appropriate
company numbers listed.
“...” or “-..” IN DISPLAY
1. Check input parameters.
2. Change to input sensor with a higher
temperature range.
3. Replace transmitter or probe.
4. Reduce temperature.
5. Perform input calibration.
1. Power off.
2. Brown-out condition.
3. Loose connection or improperly wired.
4. Bezel assembly not fully seated into rear of TLA.
7.0 TROUBLESHOOTING
1. Press R to escape, then check all set-up parameters.
a. Check sensor input and AC line for excessive noise.
b. If fault persists, replace TLA.
1. Input exceeds range of TLA.
2. Temperature exceeds range of input probe.
3. Defective or incorrect transmitter or probe.
4. Excessive high temperature for probe.
5. Loss of setup parameters.
NO DISPLAY

F
624 www.redlion.net
8.0 INSTALLING AN OUTPUT BOARD
The TLA is supplied with an output board installed.
Replacing Output Board
1. Remove the bezel assembly.
2. Lift up on the top bezel board latch while gently pulling out on the bezel/
display board assembly. Do NOT remove the display board from the bezel.
3. Remove the output board by pulling it away from the other boards. Replace
the output board by aligning the board to board connector. Be certain the
connector is fully mated.
4. Connect the bezel/ display board assembly by guiding the board ends into the
bezel latches. Slide the assembly on evenly until the display board connector
is completely engaged and bezel latches are fully seated onto the boards.
9.0 TERMINAL CONFIGURATIONS
Form-A Limit Relay with 2 Alarms Form-A Limit Relay with 2 Alarms
Form-C Limit Relay with 1 Alarm Form-C Limit Relay with 1 Alarm
AC Models DC Models

1-717-767-6511
LARGE
DISPLAYS
G
625
The Trusted Source for
Innovative Control
Solutions

Page 629 Page 629 Page 682 Page 694
G
626 www.redlion.net
QUICK Specs
LED DISPLAY
Basic Count Input Basic Count Input Via a Plug-in Personality Module Via a Plug-in Personality Module
Input
4 and 6 Digit, 2.25" (57 mm)
Red LED
4 and 6 Digit, 4" (101 mm)
Red LED
ANALOG INPUTS
5 Digit, 1.5" (38 mm) Red LED
DIGITAL INPUTS
6 Digit, 1.5" (38 mm) Red LED
ANALOG INPUTS
5 Digit, 4" (101 mm) Red LED
DIGITAL INPUTS
6 Digit, 4" (101 mm) Red LED
ANALOG INPUTS
Process, DC Voltage, DC Current,
DIGITAL INPUTS
Count, Count/Rate, Timer, and
Serial Slave
ANALOG INPUTS
Process, DC Voltage, DC Current,
DIGITAL INPUTS
Count, Count/Rate, Timer, and
Serial Slave
ANALOG INPUTS
Process, Voltage, Current,
Temperature, and Strain Gage
DIGITAL INPUTS
Count, Rate, Count/Rate, Timer,
and Real Time Clock
ANALOG INPUTS
Process, Voltage, Current,
Temperature, and Strain Gage
DIGITAL INPUTS
Count, Rate, Count/Rate, Timer,
and Real Time Clock
N/A 4 Digit Model Available
Dual Form C
Quad Form A
Quad Sinking
Quad Sourcing
Dual Form C
Quad Form A
Quad Sinking
Quad Sourcing
N/A N/A
RS232
RS485
Modbus
DeviceNet
Profibus
Ethernet w/ICM8
RS232
RS485
Modbus
DeviceNet
Profibus
Ethernet w/ICM8
NEMA 4 Version NEMA 4 Version
NEMA 4 Enclosure,
Mounting Brackets,
Custom Units Label
(5 Digit Only)
NEMA 4 Enclosure,
Mounting Brackets
85 to 250 VAC
11 to 16 VDC
85 to 250 VAC
11 to 16 VDC
85 to 250 VAC
18 to 36 VDC
24 VAC
85 to 250 VAC
4 DIGIT
101 mm (H) x 303 mm (W)
6 DIGIT
101 mm (H) x 404 mm (W)
4 DIGIT
199 mm (H) x 505 mm (W)
6 DIGIT
199 mm (H) x 657 mm (W)
121 mm (H) x 254 mm (W) 183 mm (H) x 630 mm (W)
Setpoint
Capability
Communications
Other Features/
Options
Power Source
Available
Inputs
Description
LD2 LD4 LPAX EPAX
Large Displays
Dimensions
(Height)x (Width)
Page Number

G
6271-717-767-6511
WHAT YOU’RE USING NOW CURRENT PRODUCT
EPAXLDD
QDisplay: 5 or 6 Digit, 4" (101 mm)
Red LED
QPower Source: 115/230 VAC
QInput Models: Various Models
Panel Cut-Out Dimension Differences
QDisplay: 4 or 6 Digit, 3.3" (84 mm)
Red LED
QPower Source: 115/230 VAC
QInput Models: Various Models
MODEL NUMBER FEATURES MODEL NUMBER FEATURES
REPLACEMENT Guide
Note: Refer to the current product literature, as some differences may exist.

G
628 www.redlion.net
This page intentionally left blank.

G
6291-717-767-6511
GENERAL DESCRIPTION
The Large Display is a versatile display that can be configured as a single or
dual counter with rate indication, scaling, serial communications and a dual
relay output. There are also basic models that have a single counter with
direction control only (no scaling or relay output).
The 4 & 6 digit displays are available in either 2.25" or 4" high red LED digits
with adjustable display intensities. The 2.25" high models are readable up to 130
feet. The 4" high models are readable up to 180 feet. All versions are constructed
of a NEMA 4X enclosure in light weight aluminum.
The 6-digit programmable models have two signal inputs and a choice of
eight different count modes. These include bi-directional, quadrature and anti-
coincidence counting, as well as a dual counter mode. When programmed as a
dual counter, each counter has separate scaling and decimal point selection.
Rate indication is available on the programmable models only. The rate
indicator has separate scaling and decimal point selection, along with
programmable display update times. The meter display can be toggled either
manually or automatically between the count and rate values.
The programmable models also come with a dual Form C relay output and
RS232 or RS485 serial communications. The outputs can activate based on
either counter or rate setpoint values. An internal batch counter can be used to
count setpoint output activations.
SAFETY SUMMARY
All safety regulations, local codes and instructions that appear in this and
corresponding literature, or on equipment, must be observed to ensure personal
safety and to prevent damage to either the instrument or equipment connected to
it. If equipment is used in a manner not specified by the manufacturer, the
protection provided by the equipment may be impaired.
The protective conductor terminal is bonded to conductive
parts of the equipment for safety purposes and must be
connected to an external protective earthing system.
SPECIFICATIONS
1. DISPLAY: 2.25" (57 mm) or 4" (101 mm) intensity adjustable Red LED
2. POWER REQUIREMENTS:
AC POWER: 50 to 250 VAC 50/60 Hz, 26 VA
DC POWER: 21.6 to 250 VDC, 11 W
DC Out: +24 VDC @ 100 mA if input voltage is greater than 50
VAC/VDC
+24 VDC @ 50 mA if input voltage is less than 50 VDC
Isolation: 2300 VRMS for 1 min. to all inputs and outputs
3. COUNT INPUT(S):
Counter(s) have DIP switch selectable pull-up (7.8 KΩ) or pull-down
resistors (3.9 KΩ) that determine active high or active low input logic.
Counters are DIP switch selectable for high or low frequency (Damping
capacitor provided for switch contact bounce. Limits input frequency to
50 Hz and input pulse widths to 10 msec min.)
Input A Trigger levels: VIL = 1.25 V max; VIH = 2.75 V min; VMAX = 28 VDC
Input B Trigger levels: VIL = 1.0 V max; VIH = 2.4 V min; VMAX = 28 VDC
Overflow Indication: Display "" alternates with overflowed count value
LD200400, LD200600, LD400400, & LD400600:
Count Speed: 25 KHz max. @ 50% duty cycle (no scaling)
LD2006P0 & LD4006P0:
Counter A & B Frequency:
Maximum Count Rates: 50% duty cycle, count mode dependent.
With setpoints disabled: 25 KHz, all modes except Quadrature x4 (23 KHz).
With setpoint(s) enabled: 20 KHz, all modes except Dual Counter (14 KHz),
Quadrature x2 (13 KHz) and Quadrature x4 (12 KHz).
z2.25" & 4" HIGH RED LED DIGITS
zAVAILABLE IN 4 OR 6 DIGIT VERSIONS
zSINGLE OR DUAL COUNTER with RATE INDICATOR *
zPROGRAMMABLE SCALING AND DECIMAL POINTS *
zBUILT-IN BATCH COUNTING CAPABILITY *
zPROGRAMMABLE USER INPUT *
zUNIVERSALLY POWERED
zDUAL 5 AMP FORM C RELAY *
zALUMINUM NEMA 4X CASE CONSTRUCTION
* Programmable models only
MODEL LD - LARGE DISPLAY
DIMENSIONS In inches (mm)
PART
NUMBER X (Length) Z (Center)
LD2004xx 12 (304.8) 8 (203.2)4 (101.6)
LD2006xx 16 (406.4)
LD4004xx 20 (508)
LD4006xx 26 (660.4) 22 (558.8)
CAUTION: Risk of Danger.
Read complete instructions prior to
installation and operation of the unit.
CAUTION: Risk of electric shock.
16 (406.4)
12 (304.3)4 (101.6)
Y (Height)
7.875 (200)
7.875 (200)

G
630 www.redlion.net
ORDERING INFORMATION
TYPE MODEL NO. DESCRIPTION PART NUMBER
Programmable
(With front
panel keys)
LD
Basic
(No front
panel keys)
LD
2.25" High 4-Digit Red LED Counter LD200400
LD200600
4" High 4-Digit Red LED Counter LD400400
4" High 6-Digit Red LED Counter
LD4006P0
LD2006P0
LD400600
4. RATE INPUT: Models LD2006P0 & LD4006P0 only
Display Range: 0 to 99999
Min Freq.: 0.01 Hz
Max Freq.: See Count Input specification
Accuracy: ±0.01%
Rate Overflow Indication: Display " "
5. RESET/USER INPUT:Function programmable for LD2006P0 &LD4006P0
Reset/User Input: DIP switch selectable pull-up (7.8 KΩ) or pull-down
resistor (3.9 KΩ) that determines active high or active low input logic.
Trigger levels: VIL = 1.0 V max; VIH = 2.4 V min; VMAX = 28 VDC
Response Time: 10 msec typ.; 50 msec debounce (activation and release)
6. COMMUNICATIONS (LD2006P0 & LD4006P0 only):
RS485 SERIAL COMMUNICATIONS
Type: RS485 multi-point balanced interface (isolated)
Baud Rate: 300 to 38.4 k
Data Format: 7/8 bits; odd, even, or no parity
Bus Address: 0 to 99; max 32 meters per line
RS232 SERIAL COMMUNICATIONS
Type: RS232 half duplex (isolated)
Baud Rate: 300 to 38.4 k
Data Format: 7/8 bits; odd, even, or no parity
7. MEMORY: Nonvolatile E2PROM retains all programming parameters and
count values when power is removed.
8. OUTPUT (LD2006P0 & LD4006P0 only):
Relays: Form C contacts rated at 5 amps @ 120/240 VAC or 28 VDC
(resistive load), 1/8 H.P. @ 120 VAC (inductive load)
9. ENVIRONMENTAL CONDITIONS:
Operating temperature: -30 to 65 °C
Storage temperature: -40 to 70 °C
Operating and storage humidity: 0 to 85% max. RH (non-condensing)
Vibration According to IEC 68-2-6: Operational 5 to 150 Hz, in X, Y, Z
direction for 1.5 hours, 2 g’s (1g relay).
Shock According to IEC 68-2-27: Operational 30 g’s (10g relay), 11 msec in
3 directions.
Altitude: Up to 2,000 meters
10. CONNECTIONS:
Internal removable terminal blocks are used for power and signal wiring.
Remove end plates with ¼" nut driver. For LD4 versions, all wiring is on right
side of unit. For LD2 versions, power and signal wiring connections are on
the right side and the relays and serial options are on the left side.
Wire Strip Length: 0.4" (10 mm)
Wire Gage: 24-12 AWG copper wire
Torque: 5.3 inch-lbs (0.6 N-m) max.
11. CERTIFICATIONS AND COMPLIANCES:
SAFETY
IEC 61010-1, EN 61010-1: Safety requirements for electrical equipment for
measurement, control, and laboratory use, Part 1.
IP65 Enclosure rating (Face only), IEC 529
Type 4X Enclosure rating (Face only), UL50
ELECTROMAGNETIC COMPATIBILITY
Emissions and Immunity to EN 61326: Electrical Equipment for
Measurement, Control and Laboratory use.
Notes:
1. Criterion A: Normal operation within specified limits.
2. Criterion B: Temporary loss of performance from which the unit self-
recovers.
12. CONSTRUCTION: Aluminum enclosure, and steel side panels with textured
black polyurethane paint for scratch and corrosion resistance protection. Sealed
front panel meets NEMA 4X/IP65 specifications. Installation Category II,
Pollution Degree 2.
13. WEIGHT:
LD2004XX - 3.5 lbs (1.59 kg)
LD2006XX - 4.5 lbs (2.04 kg)
LD4004XX - 8 lbs (3.63 kg)
LD4006XX - 10.5 lbs (4.76 kg)
2.25" High 6-Digit Red LED Counter
Class A
Class B
EN 55011
EN 55011
Emissions LD2006P0
Emissions LD200400
Emissions:
0.5 cycle
Criterion A
3 V/rms
EN 61000-4-11Voltage dip/interruptions
Criterion AEN 61000-4-6RF conducted interference
1 kV L-L,
Criterion AEN 61000-4-5Surge
1 kV signal
2 kV power
Criterion AEN 61000-4-4Fast transients (burst)
2 kV L&N-E power
10 V/m
Criterion B LD2006P0
Criterion A LD200400EN 61000-4-3Electromagnetic RF fields
8 kV air discharge
4 kV contact discharge
Criterion AEN 61000-4-2Electrostatic discharge
Immunity to Industrial Locations:
2.25" High 6-Digit Red LED Count/Rate Indicator w/ dual
Relay Output & RS232/RS485 Serial Communications
4" High 6-Digit Red LED Count/Rate Indicator w/ dual
Relay Output & RS232/RS485 Serial Communications
1.0 INSTALLING THE METER
INSTALLATION
The meter meets NEMA 4X/IP65 requirements when properly installed.
INSTALLATION ENVIRONMENT
The unit should be installed in a location that does not exceed the operating
temperature. Placing the unit near devices that generate excessive heat should
be avoided. The unit should only be cleaned with a soft cloth and neutral soap
product. Do NOT use solvents.
Continuous exposure to direct sunlight may accelerate the aging process of
the front overlay. Do not use tools of any kind (screwdrivers, pens, pencils, etc.)
to operate the keypad of the unit.
MOUNTING INSTRUCTIONS
This display is designed to be
wall mounted or suspended
from a ceiling truss or
other suitable structure
capable of supporting the
LD. Caution should be
exercised when hanging
the display to provide for
the safety of personnel. If
hanging the LD, run the
suspension cables (or chains)
through the mounting bracket
holes. For wall mounting use
#10-32 size bolts.

G
6311-717-767-6511
3.0 WIRING THE METER
2.0 SETTING THE DIP SWITCHES
SETTING THE 8 DIP SWITCHES
To access the switches, remove the right side plate of the meter. A bank of
eight switches is located inside the unit.
Warning: Exposed line voltage exists on the circuit boards.
Remove all power to the meter and load circuits before accessing
inside of the meter.
SWITCH 1 (Input A)
LOGIC: Input A trigger levels VIL = 1.25 V max.; VIH = 2.75 V min.;
VMAX = 28 VDC
MAG: 200 mV peak input sensitivity; 100 mV hysteresis; maximum voltage:
40 V peak (28 Vrms); Must also have SRC switch ON. (Not
recommended with counting applications.)
SWITCH 2 (Input A) {See Note 1}
SNK.: Adds internal 7.8 KΩpull-up resistor to +12 VDC, IMAX = 2.1 mA.
SRC.: Adds internal 3.9 KΩpull-down resistor, 7.2 mA max. @ 28 VDC max.
SWITCH 3 (Input A)
HI Frequency: Removes damping capacitor and allows max. frequency.
LO Frequency: Adds a damping capacitor for switch contact bounce. Limits
input frequency to 50 Hz and input pulse widths to 10 msec.
SWITCH 4 (Input B) {See Note 1}
SNK.: Adds internal 7.8 KΩpull-up resistor to +12 VDC, IMAX = 2.1 mA.
SRC.: Adds internal 3.9 KΩpull-down resistor, 7.2 mA max. @ 28 VDC max.
SWITCH 5 (Input B)
HI Frequency: Removes damping capacitor and allows max. frequency.
LO Frequency: Adds a damping capacitor for switch contact bounce. Limits
input frequency to 50 Hz and input pulse widths to 10 msec.
SWITCH 6 (RESET/USER INPUT) {See Note 1}
SNK.: Adds internal 7.8 KΩpull-up resistor to +12VDC, IMAX = 2.1 mA.
SRC.: Adds internal 3.9 KΩpull-down resistor, 7.2 mA max. @ 28 VDC max.
SWITCH 7 (POWER UP RESET)
ENABLE: In this position, the counter resets to zero at power up.
DISABLE: In this position, the counter does not reset at power up.
Note: This switch has no function for programmable models. Power-up reset is
selected through a programming parameter.
SWITCH 8 (Input B)
DIRECTION CONTROL: In this position Input B is used to control the
count direction of Input A when Input A is set to Count with Direction
mode (default mode).
INTENSITY ADJUST: In this position Input B is used to adjust the LED
intensity. There are five distinct LED levels that can be changed by pulsing
Input B. After setting the desired intensity, move switch to OFF position
for Direction Control. Units with keypads can program the LED intensity
level using Programming Menu 3.
Note 1: When the DIP switch is in the SNK position (OFF), the input is
configured as active low. When the switch is in the SRC position (ON), the
input is configured as active high.
3
4
5
6
7
8ON
SNK.
HI FREQ.
HI FREQ.
Reset/User Input SNK.
Pwr Up Reset DISABLE
Input B Direction Control
SRC.
LO FREQ.
LO FREQ.
SRC.
ENABLE
Intensity Adjust
Factory Setting
2
1
SNK.
LOGIC
SRC.
MAG.
Input A
Input B
EMC INSTALLATION GUIDELINES
Although this meter is designed with a high degree of immunity to Electro-
Magnetic Interference (EMI), proper installation and wiring methods must be
followed to ensure compatibility in each application. The type of the electrical
noise, source or coupling method into the meter may be different for various
installations. The meter becomes more immune to EMI with fewer I/O
connections. Cable length, routing, and shield termination are very important
and can mean the difference between a successful or troublesome installation.
Listed below are some EMC guidelines for successful installation in an
industrial environment.
1. The meter should be properly connected to protective earth.
2. Use shielded (screened) cables for all Signal and Control inputs. The shield
(screen) pigtail connection should be made as short as possible. The
connection point for the shield depends somewhat upon the application.
Listed below are the recommended methods of connecting the shield, in order
of their effectiveness.
a. Connect the shield only at the panel where the unit is mounted to earth
ground (protective earth).
b. Connect the shield to earth ground at both ends of the cable, usually when
the noise source frequency is above 1 MHz.
c. Connect the shield to common of the meter and leave the other end of the
shield unconnected and insulated from earth ground.
3. Never run Signal or Control cables in the same conduit or raceway with AC
power lines, conductors feeding motors, solenoids, SCR controls, and
heaters, etc. The cables should be ran in metal conduit that is properly
grounded. This is especially useful in applications where cable runs are long
and portable two-way radios are used in close proximity or if the installation
is near a commercial radio transmitter.
4. Signal or Control cables within an enclosure should be routed as far as possible
from contactors, control relays, transformers, and other noisy components.
5. In extremely high EMI environments, the use of external EMI suppression
devices, such as ferrite suppression cores, is effective. Install them on Signal
and Control cables as close to the unit as possible. Loop the cable through the
core several times or use multiple cores on each cable for additional protection.
Install line filters on the power input cable to the unit to suppress power line
interference. Install them near the power entry point of the enclosure. The
following EMI suppression devices (or equivalent) are recommended:
Ferrite Suppression Cores for signal and control cables:
Fair-Rite # 0443167251 (RLC# FCOR0000)
TDK # ZCAT3035-1330A
Steward # 28B2029-0A0
Line Filters for input power cables:
Schaffner # FN610-1/07 (RLC# LFIL0000)
Schaffner # FN670-1.8/07
Corcom # 1 VR3
Note: Reference manufacturer's instructions when installing a line filter.
6. Long cable runs are more susceptible to EMI pickup than short cable runs.
Therefore, keep cable runs as short as possible.
7. Switching of inductive loads produces high EMI. Use of snubbers across
inductive loads suppresses EMI.
Snubber: RLC# SNUB0000.

G
632 www.redlion.net
WIRING OVERVIEW
Electrical connections are made via pluggable terminal blocks located inside
the meter. All conductors should conform to the meter's voltage and current
ratings. All cabling should conform to appropriate standards of good
installation, local codes and regulations. It is recommended that the power
supplied to the meter (DC or AC) be protected by a fuse or circuit breaker. When
wiring the meter, compare the numbers on the label on the back of the meter case
against those shown in wiring drawings for proper wire position. Strip the wire,
leaving approximately 0.4" (10 mm) bare lead exposed (stranded wires should
be tinned with solder.) Insert the lead under the correct screw clamp terminal and
tighten until the wire is secure. (Pull wire to verify tightness.) Each terminal can
accept up to one #14 AWG (2.55 mm) wire, two #18 AWG (1.02 mm), or four
#20 AWG (0.61 mm).
WIRING CONNECTIONS
Internal removable terminal blocks are used for power and signal wiring.
Access to terminal blocks is through conduit fittings. Remove end plates with
¼" nut driver. For LD4 versions, all wiring is on right side of unit. For LD2
versions, power and input wiring connections are on the right side and the relay
and serial options are on the left side.
Connect drain wire from shielded cable(s) to screw on side plate for proper
grounding.
Only programmable models
have terminals TBC and TBD.
The power wiring is made via the 3 position terminal block (TBA) located
inside the unit (right side). The DC out power is located on TBB (right side).
3.1 POWER WIRING
DC Out Power
Terminal 4: + 24 VDC OUT
Terminal 6: User Common
Power
Terminal 1: VAC/DC +
Terminal 2: VAC/DC -
Terminal 3: Protective Conductor
Terminal
3.2 RESET/USER INPUT WIRING
The Reset/User Input is located on the right side.
Terminal 5: Reset/User
Terminal 6: User Comm
Sinking Logic Sourcing Logic
3.3 SETPOINT (OUTPUT) WIRING
The setpoint relays use a six position terminal block (TBC) located inside the
unit: LD4 (right side) and LD2 (left side).
Terminal 1: NC 1
Terminal 2: NO 1
Terminal 3: Relay 1 Common
Terminal 4: NC 2
Terminal 5: NO 2
Terminal 6: Relay 2 Common
LD4
LD2 Right Side
LD2 Left Side
DIP switch 6 OFF DIP switch 6 ON

G
6331-717-767-6511
3.4 INPUT WIRING
The Large Display has two signal inputs, A and B. These inputs are wired to
terminal block TBB located inside the unit on the right side.
Terminal 1: Input A
Terminal 3: Input B
Terminal 2: Input Common
Programmable models LD2006P0 and LD4006P0 provide a choice of eight
different Count Modes. The Count Mode selected determines the action of
Inputs A and B. Section 5.1, Input Setup Parameters, provides details on count
mode selection and input action.
All other models are non-programmable and provide Count with Direction
Mode only. Input A accepts the count signal, while Input B controls the count
direction (up/down).
Input B can also be used to adjust the LED display intensity by setting DIP
Switch 8 to the ON position (See Section 2.0, Setting the DIP Switches). For
programmable models, this only applies in Count with Direction mode.
CAUTION: User common is NOT isolated from input common. In order to preserve the safety of the meter application, the DC common must be suitably
isolated from hazardous live earth referenced voltage; or input common must be at protective earth ground potential. If not, hazardous voltage may
be present at the User Input and Input Common terminals. Appropriate considerations must then be given to the potential of the input common with
respect to earth ground.
AC Inputs From Tach Generators, Etc.
Input A
Two Wire Proximity, Current Source
Input A
Magnetic Pickup
Input A
Current Sourcing Output
Input A
Interfacing With TTL
Input A
Current Sinking Output
Input A
Switch or Isolated Transistor; Current Sink
Input A
Switch or Isolated Transistor; Current Source
Input A
*Switch position is application dependent.
Current Sink Output; Quad/Direction
Shaded areas not recommended for counting applications.
LD2006P0 and LD4006P0 only.
3.5 SERIAL WIRING
The serial connections are made via terminal block TBD located inside the
unit on the left side for the LD2 and on the right side for the LD4.

G
634 www.redlion.net
4.0 REVIEWING THE FRONT PANEL KEYS AND DISPLAY
5.0 PROGRAMMING THE METER
OVERVIEW
PROGRAMMING MENU
KEY DISPLAY MODE OPERATION PROGRAMMING MODE OPERATION
PAR Access Programming Mode Store selected parameter and index to next parameter
RSTTT
SELSS
Resets count display(s) and/or outputs
Index display through selected displays
Increment selected digit position of parameter value
Advance through selection list/select digit position in
parameter value
OPERATING MODE DISPLAY DESIGNATORS
“” - To the left of the display is the rate value.
- Counter A has no designator.
“” - To the left of the display is the Counter B value (dual count or batch).
“ 1”- To the right of digit 6 indicates setpoint 1 output status.
“ 2”- To the right of digit 1 indicates setpoint 2 output status.
Pressing the SELSkey toggles the meter through the selected displays. If display scroll is enabled, the display will toggle automatically every four seconds between
the rate and count values.
Sections 4 and 5 apply to Programmable Models Only
RS232 Communications
RS232 is intended to allow two devices to communicate over distances up to
50 feet. Data Terminal Equipment (DTE) transmits data on the Transmitted Data
(TXD) line and receives data on the Received Data (RXD) line. Data Computer
Equipment (DCE) receives data on the TXD line and transmits data on the RXD
line. The LD emulates a DTE. If the other device connected to the meter also
emulates a DTE, the TXD and RXD lines must be interchanged for
communications to take place. This is known as a null modem connection. Most
printers emulate a DCE device while most computers emulate a DTE device.
Some devices cannot accept more than two or three characters in succession
without a pause in between. In these cases, the meter employs a busy function.
As the meter begins to transmit data, the RXD line (RS232) is monitored to
determine if the receiving device is “busy”. The receiving device asserts that it
is busy by setting the RXD line to a space condition (logic 0). The meter then
suspends transmission until the RXD line is released by the receiving device.
RS485 Communications
The RS485 communication standard allows the connection of up to 32
devices on a single pair of wires, distances up to 4,000 ft. and data rates as high
as 10M baud (the LD is limited to 38.4k baud). The same pair of wires is used
to both transmit and receive data. RS485 is therefore always half-duplex, that is,
data cannot be received and transmitted simultaneously.
Terminal Block Connection Figure
Terminal Block Connection Figure
PROGRAMMING MODE ENTRY (PAR KEY)
It is recommended all programming changes be made off line, or before
installation. The meter normally operates in the Display Mode. No parameters
can be programmed in this mode. The Programming Mode is entered by
pressing the PAR key. If it is not accessible, then it is locked by either a security
code or a hardware lock.
MODULE ENTRY (SELS& PAR KEYS)
The Programming Menu is organized into five modules. These modules group
together parameters that are related in function. The display will alternate between
Pro and the present module. The SELSSkey is used to select the desired module.
The displayed module is entered by pressing the PAR key.

G
6351-717-767-6511
COUNT MODE
Select the count mode that corresponds with your application. The input
actions are shown in the boxes below. For simple counting applications, it is
recommended to use Count with Direction for the count mode. Simply leave the
direction input unconnected.
Counter A SubtractCounter A Add
Counter A AddCounter A Add
Quad ACount A
Quad ACount A
Quad ACount A
Counter B AddCounter A Add
Counter A AddRate only
Counter A DirectionCounter A
INPUT B ACTIONINPUT A ACTION
2 Input Add/Subtract
2 Input Add/Add
Quadrature x4
Quadrature x2
Quadrature x1
Dual Counter
Rate/Counter
Count with Direction
DISPLAY MODE
Note: The Rate indicator signal is derived from Input A in all count modes.
ª
«
MODULE MENU (PAR KEY)
Each module has a separate module menu (which is shown at the start of each
module discussion). The PAR key is pressed to advance to a particular parameter
to be changed, without changing the programming of preceding parameters.
After completing a module, the display will return to Pro NO. Programming
may continue by accessing additional modules.
SELECTION / VALUE ENTRY
For each parameter, the display alternates between the present parameter and
the selections/value for that parameter. The SELSSand RSTTTkeys are used to
move through the selections/values for that parameter. Pressing the PAR key,
stores and activates the displayed selection/value. This also advances the meter to
the next parameter.
For numeric values, the value is displayed with one digit flashing (initially the
right most digit). Pressing the RSTTTkey increments the digit by one or the user
can hold the RSTTTkey and the digit will automatically scroll. The SELSSkey
will select the next digit to the left. Pressing the PAR key will enter the value and
move to the next parameter.
PROGRAMMING MODE EXIT (PAR KEY)
The Programming Mode is exited by pressing the PAR key with Pro NO
displayed. This will commit any stored parameter changes to memory and return
the meter to the Display Mode. (If power loss occurs before returning to the
Display Mode, verify recent parameter changes.)
PROGRAMMING TIPS
It is recommended to start with Module 1 for counting or Module 2 for rate.
When programming is complete, it is recommended to record the parameter
programming and lock out parameter programming with the user input or
programming security code.
FACTORY SETTINGS
Factory Settings may be completely restored in Module 3. This is useful when
encountering programming problems.
ALTERNATING SELECTION DISPLAY
In the explanation of the modules, the following dual display with arrows will
appear. This is used to illustrate the display alternating between the parameter
on top and the parameter’s Factory Setting on the bottom. In most cases,
selections and values for the parameter will be listed on the right.
Indicates Program Mode Alternating Display
Factory Settings are shown.
ª
«
Ab
Parameter
Selection/Value
5.1 MODULE 1 - INPUT SETUP PARAMETERS ()
PARAMETER MENU
Shaded area selections only apply when Counter B is enabled (Dual Count
mode or batch counter).
COUNTER A DECIMAL POINT
This selects the decimal point position for Counter A and the setpoint value,
if assigned to Counter A. The selection will also affect Counter A scale
factor calculations.
ª
«
COUNTER A SCALE FACTOR
The number of input counts is multiplied by the scale factor to obtain the
desired process value. A scale factor of 1.0000 will result in the display of the
actual number of input counts. (Details on scaling calculations are explained at
the end of this section.)*
to
ª
«
COUNTER A RESET ACTION
ª
«
When Counter A is reset, it returns to Zero or Counter A Count Load value.
This reset action applies to all Counter A resets, except a Setpoint generated
Counter Auto Reset programmed in Module 4.
COUNTER A COUNT DIRECTION
ª
«
Reverse () switches the normal Counter A count direction shown in the
Count Mode parameter chart.

G
636 www.redlion.net
COUNTER RESET AT POWER-UP
COUNTER B DECIMAL POINT
This selects the decimal point position for Counter B. The selection will also
affect Counter B scale factor calculations.
COUNTER B SCALE FACTOR
The number of input or batch counts is multiplied by the scale factor to
obtain the desired process value. A scale factor of 1.0000 will result in the
display of the actual number of input or batch counts. (Details on scaling
calculations are explained at the end of this section.)*
to
SCALING FOR COUNT INDICATION
The counter’s scale factor is factory set to 1, to provide one count on the
display for each pulse that is input to the unit. In many applications, there will
not be a one-to-one correspondence between input pulses and display units.
Therefore, it is necessary for the meter to scale or multiply the input pulses by
a scale factor to achieve the desired display units (feet, meters, gallons, etc.)
The Count Scale Factor Value can range from 00.0001 to 99.9999. It is
important to note that the precision of a counter application cannot be improved
by using a scale factor greater than one. To accomplish greater precision, more
pulse information must be generated per measuring unit. The following formula
is used to calculate the scale factor.
Scale Factor = Desired Display Unitsx Decimal Point Position
Number of Pulses
WHERE:
Desired Display Units: Count display units acquired after pulses that occurred.
Number of Pulses: Number of pulses required to achieve the desired
display units.
Decimal Point Position:
0=1
0.0 = 10
0.00 = 100
0.000 = 1000
0.0000 = 10000
ª
«
ª
«
ª
«
USER INPUT ASSIGNMENT
The User Input Assignment is only active when Counter B is enabled and the
user input selection perfroms a Reset, Inhibit or Store function on one or both
of the counters.
USER INPUT FUNCTION
ª
«
ª
«
COUNTER A COUNT LOAD VALUE
Counter A resets to this value if Reset to Count Load action is selected. To
enter a negative Count Load value, increment digit 6 to display a “-” sign.*
to
ª
«
* Indicates Edge Triggered function. All others are Level Active functions.
Advance once for each
activation.
Increase intensity one level
for each activation.
Reset setpoint 1 output.
Reset setpoint 2 output.
Reset both setpoint 1 and 2
outputs.
Freeze display for the selected
counter(s) while allowing
counts to accumulate internally.
Display Select *
Display Intensity Level *
Setpoint 1 Reset *
Setpoint 2 Reset *
Print and Reset *
Print Request
Setpoint 1 and 2 Reset *
See Programming Mode
Access chart (Module 3).
Edge triggered reset of the
selected counter(s) after
storing the count.
Store and Reset
Store
Inhibit counting for the
selected counter(s).
Level active reset of the
selected counter(s).
Inhibit
Maintained Reset
Program Mode Lock-out
User Input disabled.
DESCRIPTION
No Function
DISPLAY MODE
Serial transmit of the active
parameters selected in the Print
Options menu (Module 5).
Same as Print Request followed
by a momentary reset of the
selected counter(s).
EXAMPLE: The counter display is used to indicate the total number of feet
used in a process. It is necessary to know the number of pulses for the desired
units to be displayed. The decimal point is selected to show the resolution in
hundredths.
Scale Factor = Desired Display Unitsx Decimal Point Position
Number of Pulses
Given that 128 pulses are equal to 1 foot, display total feet with a one-
hundredth resolution.
Scale Factor = 1.00 x 100
128
Scale Factor = 0.007812 x 100
Scale Factor = 0.7812
COUNTER B BATCH COUNT ENABLE
ª
«
The Counter B Batch Count function internally counts the number of output
activations of the selected setpoint(s). The count source for the batch counter
can be SP1, SP2 or both. Batch counting is available in all count modes except
Dual Counter, which uses an external input signal for Counter B.
*For value entry instructions, refer to selection/value entry in the Programming
The Meter section.
The selected counter(s) will reset at each meter power-up.
Shaded area selections only apply when Counter B is enabled (Dual Count
mode or batch counter).

G
6371-717-767-6511
SCALING FOR RATE INDICATION
To scale the Rate, enter a Scaling Display value with a corresponding Scaling
Input value. These values are internally plotted to a Display value of 0 and Input
value of 0.0 Hz. A linear relationship is formed between these points to yield a
rate display value that corresponds to the incoming input signal rate. The meter
is capable of showing a rate display value for any positive slope linear process.
SCALING CALCULATION FOR KEY-IN STYLE
If a display value versus input signal (in pulses per second) is known, then
those values can be entered into Scaling Display () and Scaling Input
(). No further calculations are needed.
If only the number of pulses per ‘single’ unit (i.e. # of pulses per foot) is
known, then it can be entered as the Scaling Input value and the Scaling Display
value will be entered as the following:
NOTES:
1. If # of pulse per unit is less than 1, then multiply both Input and Display
values by 10 or 100 as needed for greater accuracy.
2. If the Display value is raised or lowered, then Input value must be raised
or lowered by the same proportion (i.e. Display value for per hour is
entered by a third less (1200) then Input value is a third less of # of pulses
per unit). The same is true if the Input value is raised or lowered, then
Display value must be raised or lowered by the same proportion.
3. Both values must be greater than 0.
EXAMPLE:
1. With 15.1 pulses per foot, show feet per minute in tenths. Scaling Display
= 60.0 Scaling Input = 15.1.
2. With 0.25 pulses per gallon, show whole gallons per hour. (To have greater
accuracy, multiply both Input and Display values by 10.) Scaling Display
= 36000 Scaling Input = 2.5.
RATE ENABLE
This selects the decimal point position for rate displays and any setpoint value
assigned to these displays. This parameter does not affect rate scaling calculations.
RATE DECIMAL POINT
RATE SCALING INPUT VALUE
RATE SCALING DISPLAY VALUE
Enter the desired Rate Display value for the Scaling Point. This value is
entered using the front panel buttons for either Scaling Style.*
Enter the corresponding Rate Input value using the Scaling Style selected. *
to
to
ª
«
ª
«
ª
«
ª
«
RATE PER DISPLAY ()INPUT ()
Second 1 # of pulses per unit
Minute 60 # of pulses per unit
Hour 3600 # of pulses per unit
5.2 MODULE 2 - RATE SETUP PARAMETERS ()
PARAMETER MENU
RATE INPUT SCALING STYLE
If a Rate Input value (in Hz) and the corresponding Rate Display value are
known, the Key-in () Scaling Style can be used. This allows rate scaling
without the presence of a rate input signal.
If the Rate Input value has to be derived from the actual rate input signal, the
Apply () Scaling Style should be used.
ª
«
Key-in Style:
Enter the Rate Input value using the front panel buttons. This value is always
in pulses per second (Hz).*
Apply Style:
The meter initially shows the stored Rate Input value. To retain this value,
press PAR to advance to the next parameter. To enter a new value, apply the rate
input signal to Input A. Press RSTTTand the applied input frequency (in Hz) will
appear on the display. To insure the correct reading, wait several rate sample
periods (see Rate Low Update Time) or until a consistent reading is displayed.
Press PAR to store the displayed value as the new Rate Input value.
*For value entry instructions, refer to selection/value entry in the Programming
The Meter section.
The Low Update Time is the minimum amount of time between display
updates for the Rate display. Values of 0.1 and 0.2 seconds will update the
display correctly but may cause the display to appear unsteady.
RATE LOW UPDATE TIME (DISPLAY UPDATE)
to seconds
The High Update Time is the maximum amount of time before the Rate
display is forced to zero. (For more explanation, refer to Rate Value
Calculation.) The High Update Time must be higher than the Low Update Time
and higher than the desired slowest readable speed (one divided by pulses per
second). The factory setting of 2.0, will force the display to zero for speeds
below 0.5 Hz or a pulse every 2 seconds.
RATE HIGH UPDATE TIME (DISPLAY ZERO)
to seconds
ª
«
ª
«
This parameter enables the rate display. For maximum input frequency, Rate
Enable should be set to when not in use. When set to , the remaining rate
parameters are not accessible.

G
638 www.redlion.net
The selection allows the SELSSkey to toggle through the enabled
displays.
FRONT PANEL DISPLAY SELECT ENABLE (SELS)
The selection allows the RSTTTkey to reset the selected counter(s). The
shaded selections are only active when Counter B is enabled (Dual Count Mode
or batch counter).
FRONT PANEL COUNTER RESET ENABLE (RSTT)
The selection allows the display to automatically scroll through the
enabled displays. The scroll rate is about every 4 seconds.
DISPLAY SCROLL ENABLE
Enter the desired Display Intensity Level (1-5). The display will actively dim
or brighten as levels are changed.
DISPLAY INTENSITY LEVEL
The Security Code determines the programming mode and the accessibility
of programming parameters. This code can be used along with the Program
Mode Lock-out () in the User Input Function parameter (Module 1).
Two programming modes are available. Full Programming mode allows all
unit parameters to be viewed and modified. Quick Programming mode permits
only user selected values to be modified, but allows direct access to these values
without having to enter Full Programming mode.
Entering a Security Code from 1-99 enables Quick Programming mode, and
displays a sublist to select which values appear in the Quick Programming
menu. All of the values set to in the sublist are accessible in Quick
Programming. The values include Setpoints (, ), Output Time-outs
(, ), Count Load value ( ) and Display Intensity ().
Programming any Security Code other than 0, requires this code to be entered
at the prompt in order to access Full Programming mode. Quick
Programming mode, if enabled, is accessed before the prompt appears.
PROGRAMMING SECURITY CODE
to
to
ª
«
ª
«
ª
«
ª
«
ª
«
USER INPUT
FUNCTION
USER INPUT
STATE
SECURITY
CODE
MODE WHEN “PAR”
KEY IS PRESSED
FULL PROGRAMMING
MODE ACCESS
0Full Programming Immediate Access
not
______ 1-99 Quick
Programming
After Quick Programming
with correct code entry
at prompt *
100-999 prompt With correct code entry
at prompt *
0Programming
Lock No Access
Active 1-99 Quick
Programming No Access
100-999 prompt With correct code entry
at prompt *
Not Active 0-999 Full Programming Immediate Access
* Entering Code 222 allows access regardless of security code.
INPUT FREQUENCY CALCULATION
The meter determines the input frequency by summing the number of falling
edges received during a sample period of time. The sample period begins on the
first falling edge. At this falling edge, the meter starts accumulating time
towards Low Update and High Update values. Also, the meter starts
accumulating the number of falling edges. When the time reaches the Low
Update Time value, the meter looks for one more falling edge to end the sample
period. If a falling edge occurs (before the High Update Time value is reached),
the Rate display will update to the new value and the next sample period will
start on the same edge. If the High Update Time value is reached (without
receiving a falling edge after reaching Low Update Time), then the sample
period will end but the Rate display will be forced to zero. The High Update
Time value must be greater than the Low Update Time value. Both values must
be greater than 0.0. The input frequency calculated during the sample period, is
then shown as a Rate value determined by the scaling calculation.
5.3 MODULE 3 - DISPLAY AND FRONT PANEL KEY
PARAMETERS ()
PARAMETER MENU

G
6391-717-767-6511
Select to perform either of the Factory Service Operations shown below.
FACTORY SERVICE OPERATIONS
ª
«
Entering Code 50 will display the model and version (x.x) of the meter. The
display then returns to . Press the PAR key to exit the module.
VIEW MODEL AND VERSION DISPLAY
ª
«
Entering Code 66 will overwrite all user settings with the factory default
settings. The meter will display and then return to . Press the
PAR key to exit the module.
RESTORE FACTORY DEFAULT SETTINGS
ª
«
5.4 MODULE 4 - SETPOINT OUTPUT PARAMETERS ()
PARAMETER MENU
Some Setpoint parameters will not appear depending on the Setpoint Assignment and Setpoint
Output Action selected. The Setpoint Parameter Availability chart below illustrates this.
* BOUNDARY Setpoint Action not applicable for Counter B assignment.
Select the Setpoint Output to be programmed, starting with Setpoint 1. The
“” in the following parameters reflects the chosen Setpoint number. After the
selected setpoint is completely programmed, the display returns to .
Repeat steps for Setpoint 2 if both Setpoints are being used. Select to exit the
Setpoint programming module.
SETPOINT SELECT
ª
«
Select to enable the chosen setpoint and access the setup parameters. If
is selected, the unit returns to and the setpoint is disabled.
SETPOINT ENABLE
ª
«
PARAMETER
Standby Operation (Low ActingOnly)
YesNoYesYesNoYesOutput Reset with Manual Reset
rSt-n
NoNoNoYesNoYesSP2 Output Off at SP1 (SP2 only)
OFF1-2
NoNoNoYesNoYesSP1 Output Off at SP2 (SP1 only)
OFF2-1
NoNoNoYesNoYesCounter Auto Reset
AUtO-n
YesYesYesNoYesNo
StbY-n
YesYesYesNoYesNoSetpoint Boundary Type
tYPE-n
YesNoNoYe sNoNoSetpoint Output Power-up State
P-UP-n
YesYesYesYesYesYesSetpoint Annunciator
LIt-n
YesYesYesYesYesYesSetpoint Output Logic
OUt-n
YesYesYesYesYesYesSetpoint Value
SPt-n
NoNoYesNoNoYesSetpoint Output Time-out Value
tOUt-n
LATCH
BOUNDARY
TIMED OUT
LATCH
BOUNDARY
TIMED OUT
DESCRIPTION
RATE ASSIGNMENTCOUNTER ASSIGNMENT (A or B)*

G
640 www.redlion.net
SETPOINT OUTPUT TIME-OUT
This parameter is only active if the Setpoint Action is set to timed output
mode (). Enter the value in seconds that the output will be active, once
the Setpoint Value is reached.
to seconds
SETPOINT VALUE
Enter the desired Setpoint value. To enter a negative setpoint value,
increment digit 6 to display a “-” sign (Counter A only).
Count A: to
Rate: to
Count B: to
ª
«
ª
«
Select the display the Setpoint is to be assigned.
SETPOINT ASSIGNMENT
ª
«
This parameter selects the action of the Setpoint output as described in the
chart below. Boundary mode is not applicable for Counter B assignment.
SETPOINT OUTPUT ACTION
ª
«
SPT ACTION DESCRIPTION OUTPUT ACTIVATES OUTPUT DEACTIVATES
Latched Output Mode When Count =
Setpoint
At Manual Reset
(if =)
Timed Output Mode When Count =
Setpoint
After Setpoint
Output Time-Out
Boundary Mode
(High Acting)
Boundary Mode
(Low Acting)
When Count ≥
Setpoint
When Count ≤
Setpoint
When Count
< Setpoint
When Count
> Setpoint
Normal () turns the output “on” when activated and “off” when
deactivated. Reverse () turns the output “off” when activated and “on”
when deactivated.
SETPOINT OUTPUT LOGIC
ª
«
Normal () displays the setpoint annunciator when the corresponding output
is “on”. Reverse () displays the setpoint annunciator when the output is “off”.
SETPOINT ANNUNCIATOR
ª
«
will restore the output to the same state it was at before the meter was
powered down. will activate the output at power up. will deactivate the
output at power up.
ª
«
High Acting Boundary Type activates the output when the assigned display
value () equals or exceeds the Setpoint value. Low Acting activates the
output when the assigned display value is less than or equal to the Setpoint.
SETPOINT BOUNDARY TYPE
ª
«
This parameter automatically resets the Setpoint Assigned Counter (A or B)
each time the Setpoint value is reached. The automatic reset can occur at output
start, or output end if the Setpoint Output Action is programmed for timed
output mode. The Reset-to-Count Load selections (“”) only apply to
Counter A assignment. This reset may be different from the Counter A Reset
Action selected in Module 1.
COUNTER AUTO RESET
This parameter only applies to Low Acting Boundary Type setpoints. Select
to disable a Low Acting Setpoint at power-up, until the assigned display
value crosses into the output “off” area. Once in the output “off” area, the
Setpoint will then function per the description for Low Acting Boundary Type.
SETPOINT STANDBY OPERATION
ª
«
ª
«
Selecting causes the Setpoint output to deactivate (reset) when the
Setpoint Assigned Counter is reset. The counter reset can occur by the RSTTT
key, User Input or Counter Reset at Power-up.
This output reset will not occur when the Assigned Counter is reset by a
Setpoint generated Counter Auto Reset.
SETPOINT OUTPUT RESET WITH MANUAL RESET
This parameter will deactivate Setpoint 1 output at the Start or End of
Setpoint 2 output (O1 off at O2). The “” setting only applies if Setpoint 2
Output Action is programmed for timed output.
SETPOINT 1 OUTPUT OFF AT SETPOINT 2 (SP1 Only)
ª
«
This parameter will deactivate Setpoint 2 output at the Start or End of
Setpoint 1 output (O2 off at O1). The “” setting only applies if Setpoint 1
Output Action is programmed for timed output.
SETPOINT 2 OUTPUT OFF AT SETPOINT 1 (SP2 Only)
ª
«
ª
«
Reset to Count Load at the End of output activation (timed out only)
Reset to Zero at the End of output activation (timed out only)
CLd-En
ZEr-En
Reset to Count Load value at the Start of output activation
CLd-St
Reset to Zero at the Start of output activation
ZEr-St
No Auto Reset
NO
ACTIONSELECTION
SETPOINT OUTPUT POWER-UP STATE

G
6411-717-767-6511
5.5 MODULE 5 - SERIAL COMMUNICATIONS PARAMETERS ()
PARAMETER MENU
DATA BIT
ABBREVIATED PRINTING
PARITY BIT
METER ADDRESS
Module 5 is the programming module for the Serial Communications
Parameters. These parameters are used to match the serial settings of the meter
with those of the host computer or other serial device.
BAUD RATE
Set the baud rate to match that of other serial communications equipment.
Normally, the baud rate is set to the highest value that all of the serial
communications equipment is capable of transmitting and receiving.
Select either 7- or 8-bit data word length. Set the word length to match the
other serial communications equipment on the serial link.
This parameter only appears when the Data Bit parameter is set to a 7-bit
data word length. Set the parity bit to match that of the other serial equipment
on the serial link. The meter ignores parity when receiving data and sets the
parity bit for outgoing data. If parity is set to , an additional stop bit is used
to force the frame size to 10 bits.
Enter the serial node address. With a single unit, an address is not needed
and a value of zero can be used (RS232 applications). Otherwise, with multiple
bussed units, a unique address number must be assigned to each meter. The
node address applies specifically to RS485 applications.
This parameter determines the formatting of data transmitted from the meter
in response to a Transmit Value command or a Block Print Request. Select
for a full print transmission, consisting of the meter address, mnemonics, and
parameter data. Select for abbreviated print transmissions, consisting of the
parameter data only. This setting is applied to all the parameters selected in the
PRINT OPTIONS. (Note: If the meter address is 0, the address will not be sent
during a full transmission.)
to
ª
«
ª
«
ª
«
Odd
ª
«
ª
«
PRINT OPTIONS
This parameter selects the meter values transmitted in response to a Print
Request. A print request is also referred to as a block print because more than
one parameter can be sent to a printer or computer as a block.
Selecting displays a sublist for choosing the meter parameters to appear
in the print block. All active parameters entered as in the sublist will be
transmitted during a block print. Parameters entered as will not be sent.
The “Print All” () option selects all meter values for transmitting
(), without having to individually select each parameter in the sublist.
Note: Inactive parameters will not be sent regardless of the print option
setting. For example, Counter B or Scale Factor B will only be sent if Counter
B is enabled (Dual Counter mode or batch count). Likewise, the Rate value will
not be sent unless the Rate Display is enabled.
ª
«
DISPLAY MNEMONIC
Counter A CTA
Counter B CTB
Rate Value RTE
SFA
SFB
Setpoint 2
Setpoint 1
CLD
SP2
SP1
DESCRIPTION FACTORY
SETTING
Scale Factor A
Scale Factor B
Counter A Count Load
AUTOMATIC DATA TRANSMIT
ª
«
Selecting causes the meter to automatically transmit serial data per the
Print Options selection list. This occurs without using the User Input terminal
Print Request function (Module 1), and without requiring any serial data request
commands. This makes the User Input available to perform other functions,
while still allowing the meter to output serial data.
The selected data is transmitted repeatedly every 1.5 seconds during normal
operating mode, and pauses during programming mode.
COPY PROGRAM SETTINGS
ª
«
This parameter is used to copy all the program settings from one LD meter
directly to another LD meter(s), through the serial terminal block connections
(RS232 or RS485). No PC connection or additional software is required.
Copying program setttings eliminates or greatly reduces programming time
when multiple meters use identical, or very similar, settings for an application.
Copy Requirements:
To copy program settings from one meter to another requires the following:
1. Each meter must have the same software version. The version is displayed
during the meter power-up sequence, or by entering Code 50 in the Factory
Service Operations. (See Module 3 for details)

G
642 www.redlion.net
Sending Serial Commands and Data
When sending commands to the meter, a string containing at least one
command character must be constructed. A command string consists of a
command character, a value identifier, numerical data (if writing data to the
meter) followed by a command terminator character, * or $.
Command Chart
Register Identification Chart
ID Value Description MNEMONIC Transmit Details (T and V)
ACounter A CTA 6 digit positive/5 digit
negative (with minus sign)
BCounter B CTB 5 digit, positive only
CRate RTE 5 digit, positive only
DScale Factor A SFA 6 digit, positive only
EScale Factor B SFB 6 digit, positive only
H
G
F
CLD
SP2
SP1
6 digit positive/5 digit
negative (with minus sign)
per setpoint Assignment,
same as Counter or Rate
per setpoint Assignment,
same as Counter or Rate
T, V, R
T, V, R
T
T, V
T, V
T, V, R
T, V, R
T, V, R
Command String Construction
The command string must be constructed in a specific sequence. The meter
does not respond with an error message to illegal commands. The following
procedure details construction of a command string:
1. The first 2 or 3 characters consist of the Node Address Specifier (N) followed
by a 1 or 2 character node address number. The node address number of the
meter is programmable. If the node address is 0, this command and the node
address itself may be omitted. This is the only command that may be used in
conjunction with other commands.
2. After the optional address specifier, the next character is the command
character.
3. The next character is the register ID. This identifies the register that the
command affects. The P command does not require a register ID character. It
prints all the active selections chosen in the Print Options menu parameter.
4. If constructing a value change command (writing data), the numeric data is
sent next.
5. All command strings must be terminated with the string termination
characters * or $. The meter does not begin processing the command string
until this character is received. See timing diagram figure for differences in
meter response time when using the * and $ terminating characters.
Command String Examples:
1. Node address = 17, Write 350 to the Setpoint 1 value
String: N17VF350*
2. Node address = 5, Read Counter A, response time of 50 msec min
String: N5TA*
3. Node address = 0, Reset Setpoint 1 output
String: RF*
4. Node address = 31, Request a Block Print Output, response time of 2 msec min
String: N31P$
Transmitting Data to the Meter
Numeric data sent to the meter must be limited to transmit details listed in the
Register Identification Chart. Leading zeros are ignored. Negative numbers
must have a minus sign. The meter ignores any decimal point and conforms the
number to the scaled resolution. (For example: The meter’s scaled decimal point
position is set for 0.0 and 25 is written to a register. The value of the register is
now 2.5. In this case, write a value of 250 to equal 25.0).
Note: Since the meter does not issue a reply to value change commands, follow
with a transmit value command for readback verification.
Applicable
Commands
Initiates a block print output. Registers in the
print block are selected in Print Options.
Block Print Request
(read)
P
Reset a count value or setpoint output. Must
be followed by a register ID character
ResetR
Write to register of the meter. Must be
followed by a register ID character and
numeric data.
Value Change (write)V
Read a register from the meter. Must be
followed by a register ID character.
Transmit Value (read)T
Address a specific meter. Must be followed by
one or two digit node address. Not required
when node address = 0.
Node (meter)
Address Specifier
N
NotesDescriptionCommand
2. Each meter receiving the program settings (receiver) must have the baud rate
set to 9600 baud. This is the factory default setting, so a new meter should
arrive ready for copying. The meter sending the program settings (master)
should be set to the desired baud rate for the application (if different than
9600). This baud rate setting will then be copied to the receiver(s).
Copy Connections:
To connect the LD meters for copying, refer to section 3.5 Serial Wiring for
details. The meter shown in the figures as LD METER will be the master.
1. RS232 - Allows copying from the master meter to a single receiver only.
2. RS485 - Allows copying from the master meter to one or more receivers
simultaneously. Up to 31 receiving meters can be connected during copying.
Copy Procedure:
1. Connect the master and receiver(s) using RS232 or RS485 terminals.
2. Apply power to the meters. The receiving meter(s) must be operating in the
normal display mode (not programming mode).
3. On the master meter, proceed to the Copy Program Settings parameter and
select to begin copying.
4. During the copy process (~ 2 sec.), the master meter displays an upload message
() while the receiver(s) displays a download message (). This
indicates successful communication between the master and receiver(s).
5. When copying is completed, all receivers display the power-up sequence and
return to normal operating mode, programmed with all the same settings as
the master meter. The master remains at the prompt, ready for another
receiver(s) to be connected for copying.
Setpoint 1
(Reset Output 1)
Setpoint 2
(Reset Output 2)
Counter A Count
Load Value
Receiving Data From The Meter
Data is transmitted from the meter in response to either a transmit command
(T), a block print request command (P) or a User Input print request. The
response from the meter is either a full field transmission or an abbreviated
transmission, depending on the selection chosen in Module 5.
Full Field Transmission
* These characters only appear in the last line of a block print.
The first two characters transmitted are the meter address. If the address
assigned is 0, two spaces are substituted. A space follows the meter address field.
The next three characters are the register mnemonic, as shown in the Register
Identification Chart.
The numeric data is transmitted next. The numeric field (bytes 7 to 18) is 12
characters long. When a requested counter or rate value exceeds the meter’s
display limits, an * (used as an overflow character) replaces a space in byte 7.
Byte 8 is always a space.
The remaining ten positions of this field consist of a minus sign (for negative
values), a floating decimal point (if applicable), and eight positions for the
requested value. The data within bytes 9 to 18 is right-aligned with leading
spaces for any unfilled positions.
The end of the response string is terminated with a <CR> and <LF>. After the
last line of a block print, an extra <SP>, <CR> and <LF> are added to provide
separation between the print blocks.
Byte Description
1, 2 2 byte Node Address field [00-99]
3<SP> (Space)
4-6 3 byte Register Mnemonic field
7-18
19 <CR> (carriage return)
20 <LF> (line feed)
21 <SP>* (Space)
22 <CR>* (carriage return)
23 <LF>* (line feed)
12 byte data field; 10 for number, one for sign, one for decimal point

G
6431-717-767-6511
Abbreviated Transmission
* These characters only appear in the last line of a block print.
The abbreviated response suppresses the node address and register ID,
leaving only the numeric part of the response.
Meter Response Examples:
1. Node address = 17, full field response, Counter A = 875
17 CTA 875 <CR><LF>
2. Node address = 0, full field response, Setpoint 1 = -250.5
SP1 -250.5<CR><LF>
3. Node address = 0, abbreviated response, Setpoint 1 = 250, last line of block
print
250<CR><LF><SP><CR><LF>
Command Response Time
The meter can only receive data or transmit data at any one time (half-duplex
operation). During RS232 transmissions, the meter ignores commands while
transmitting data, but instead uses RXD as a busy signal. When sending
commands and data to the meter, a delay must be imposed before sending
another command. This allows enough time for the meter to process the
command and prepare for the next command.
At the start of the time interval t1, the computer program prints or writes the
string to the com port, thus initiating a transmission. During t1, the command
characters are under transmission and at the end of this period, the command
terminating character (* or $) is received by the meter. The time duration of t1
is dependent on the number of characters and baud rate of the channel.
t1= (10 times the # of characters) / baud rate
At the start of time interval t2, the meter starts the interpretation of the
command and when complete, performs the command function. This time
interval t2varies. If no response from the meter is expected, the meter is ready
to accept another command.
If the meter is to reply with data, the time interval t2is controlled by the use
of the command terminating character. The ‘*’ terminating character results in
a response time of 50 msec. minimum. This allows sufficient time for the
release of the sending driver on the RS485 bus. Terminating the command line
with ‘$’ results in a response time (t2) of 2 msec. minimum. The faster response
time of this terminating character requires that sending drivers release within 2
msec. after the terminating character is received.
At the beginning of time interval t3, the meter responds with the first
character of the reply. As with t1, the time duration of t3is dependent on the
number of characters and baud rate of the channel. At the end of t3, the meter is
ready to receive the next command.
t3= (10 times the # of characters) / baud rate
The maximum serial throughput of the meter is limited to the sum of the
times t1, t2and t3.
Timing Diagram Figure
Communication Format
Data is transferred from the meter through a serial communication channel.
In serial communications, the voltage is switched between a high and low level
at a predetermined rate (baud rate) using ASCII encoding. The receiving device
reads the voltage levels at the same intervals and then translates the switched
levels back to a character. The voltage level conventions depend on the interface
standard. The table lists the voltage levels for each standard.
Data is transmitted one byte at a time with a variable idle period between
characters (0 to ∞). Each ASCII character is “framed” with a beginning start bit,
an optional parity bit and one or more ending stop bits. The data format and
baud rate must match that of other equipment in order for communication to
take place. The figures list the data formats employed by the meter.
Start Bit and Data Bits
Data transmission always begins with the start bit. The start bit signals the
receiving device to prepare for reception of data. One bit period later, the least
significant bit of the ASCII encoded character is transmitted, followed by the
remaining data bits. The receiving device then reads each bit position as they are
transmitted.
Parity Bit
After the data bits, the parity bit is sent. The transmitter sets the parity bit to
a zero or a one, so that the total number of ones contained in the transmission
(including the parity bit) is either even or odd. This bit is used by the receiver
to detect errors that may occur to an odd number of bits in the transmission.
However, a single parity bit cannot detect errors that may occur to an even
number of bits. Given this limitation, the parity bit is often ignored by the
receiving device. The meter ignores the parity bit of incoming data and sets the
parity bit to odd, even or none (mark parity) for outgoing data.
Stop Bit
The last character transmitted is the stop bit. The stop bit provides a single bit
period pause to allow the receiver to prepare to re-synchronize to the start of a
new transmission (start bit of next byte). The receiver then continuously looks
for the occurrence of the start bit. If 7 data bits and no parity is selected, then 2
stop bits are sent from the meter.
Character Frame Figure
LOGIC RS232* RS485*INTERFACE STATE
1TXD,RXD; -3 to -15 V a-b < -200 mVmark (idle)
0TXD,RXD; +3 to +15 V a-b > +200 mVspace (active)
* Voltage levels at the Receiver
Byte Description
1-12 12 byte data field, 10 bytes for number, one byte for sign,
one byte for decimal point
13 <CR> (carriage return)
14 <LF> (line feed)
15 <SP>* (Space)
16 <CR>* (carriage return)
17 <LF>* (line feed)

G
644 www.redlion.net
PROGRAMMING QUICK OVERVIEW
Press PAR key to enter
Programming Mode.

G
6451-717-767-6511
GENERAL DESCRIPTION
The Large Display Timer and Cycle Counter is a versatile display that
functions as an Elapsed Timer or Preset Timer, with full-featured user
programmability. The meter includes a built-in Cycle Counter, relay output and
serial communications capability. The 6 digit displays are available in either
2.25" or 4" high red LED digits with adjustable display intensity. The 2.25" high
models are readable up to 130 feet. The 4" high models are readable up to 180
feet. Both versions are constructed of a NEMA 4 enclosure in light weight
aluminum.
The Timer has two signal inputs and eight input operating modes. These
modes provide level active or edge triggered start/stop operation. The Timer
features 18 selectable timer ranges to cover a wide variety of timing
applications. The built-in Cycle Counter can be linked to timer operation to
count timing cycles, or function as a totally independent counter, accepting
count speeds up to 500 Hz. The display can be toggled either manually or
automatically between the Timer and Counter values.
In addition to the Timer/Counter inputs, a programmable User Input is
provided to perform a variety of meter functions. DIP switches are used to
configure the inputs for current sinking (active low) or current sourcing (active
high) operation.
The Setpoint Output can be assigned to the Timer or Counter value, and
configured to suit a variety of control and alarm requirements. The meter also
includes RS232 or RS485 serial communications.
SAFETY SUMMARY
All safety regulations, local codes and instructions that appear in this and
corresponding literature, or on equipment, must be observed to ensure personal
safety and to prevent damage to either the instrument or equipment connected to
it. If equipment is used in a manner not specified by the manufacturer, the
protection provided by the equipment may be impaired.
The protective conductor terminal is bonded to conductive
parts of the equipment for safety purposes and must be
connected to an external protective earthing system.
SPECIFICATIONS
1. DISPLAY: 2.25" (57 mm) or 4" (101 mm) intensity adjustable Red LED
2. POWER REQUIREMENTS:
AC POWER: 50 to 250 VAC 50/60 Hz, 26 VA
DC POWER: 21.6 to 250 VDC, 11 W
DC Out: +24 VDC @ 100 mA if input voltage is greater than 50 VAC/VDC
+24 VDC @ 50 mA if input voltage is less than 50 VDC
Isolation: 2300 VRMS for 1 min. to all inputs and outputs
3. TIMER DISPLAY: 6-digits
Display Range: 0 to 999999
Overflow/Underflow Indication: Display flashes “ ”
Minimum Digit Resolution: 0.001 Sec.
Maximum Single Digit Resolution: 1 Hr.
Timing Accuracy: ±0.01%
4. CYCLE COUNTER DISPLAY: 5-digits, may be disabled if not used
Display Designator: “” to the left side of the display
Display Range: 0 to 99999
Overflow/Underflow Indication: Display flashes “ ”
z2.25" or 4" HIGH RED LED DIGITS
z6-DIGIT BI-DIRECTIONAL TIMING CAPABILITY
z5-DIGIT CYCLE COUNTING CAPABILITY
zSELECTABLE TIMER RANGES AND OPERATING MODES
zELAPSED TIMER AND PRESET TIMER FUNCTIONALITY
zSERIAL COMMUNICATIONS (RS232 or RS485)
zPROGRAMMABLE USER INPUT
zUNIVERSALLY POWERED
z5 AMP FORM C RELAY OUTPUT
zALUMINUM NEMA 4X CASE CONSTRUCTION
MODEL LD - LARGE DISPLAY TIMER AND CYCLE COUNTER
DIMENSIONS In inches (mm)
X (Length)
LD2T06P0 16 (406.4)
LD4T06P0 26 (660.4) 7.875 (200)
CAUTION: Risk of Danger.
Read complete instructions prior to
installation and operation of the unit.
CAUTION: Risk of electric shock.
12 (304.8)4 (101.6)
C
C
US LISTED
US LISTED
UL
R
IND. CONT. EQ.
51EB
PART
NUMBER Z (Center)Y (Height)
22 (558.8)

G
646 www.redlion.net
ORDERING INFORMATION
MODEL NO. DESCRIPTION PART NUMBER
LD
LD2T06P0
LD4T06P0
Maximum Count Rate:
All Count Sources except Input B: 10 Hz
Input B Count Source:
With Timer Input Filter ON: 10 Hz
With Timer Input Filter OFF: 500 Hz
5. TIMER SIGNAL INPUTS (INP A and INP B)
DIP switch selectable pull-up (7.8 KΩ) or pull-down (3.9 KΩ) resistors
determine active high or active low input logic.
Input A:
Trigger levels: VIL = 1.25 V max; VIH = 2.75 V min; VMAX = 28 VDC
Input B:
Trigger levels: VIL = 1.0 V max; VIH = 2.4 V min; VMAX = 28 VDC
Inputs A and B:
Timer Input Pulse Width: 1 msec min.
Timer Start/Stop Response Time: 1 msec max.
Filter: Software filtering provided for relay or switch contact debounce.
Filter enabled or disabled through programming. If enabled, results in
50 msec start/stop response time for successive pulses applied to the
same input terminal.
6. RESET/USER INPUT Programmable Function Input:
DIP switch selectable pull-up (7.8 KΩ) or pull-down (3.9 KΩ) resistor
that determines active high or active low input logic.
Trigger levels: VIL = 1.0 V max; VIH = 2.4 V min; VMAX = 28 VDC
Response Time: 10 msec typ.; 50 msec debounce (activation and release)
7. COMMUNICATIONS:
RS485 SERIAL COMMUNICATIONS
Type: RS485 multi-point balanced interface (isolated)
Baud Rate: 300 to 38400
Data Format: 7/8 bits; odd, even, or no parity
Bus Address: 0 to 99; max 32 meters per line
RS232 SERIAL COMMUNICATIONS
Type: RS232 half duplex (isolated)
Baud Rate: 300 to 38400
Data Format: 7/8 bits; odd, even, or no parity
8. MEMORY: Nonvolatile E2PROM retains all programming parameters and
timer/count values when power is removed.
9. OUTPUT:
Relay: Form C contacts rated at 5 amps @ 120/240 VAC or 28 VDC
(resistive load), 1/8 H.P. @ 120 VAC (inductive load)
10. CONNECTIONS:
Internal removable terminal blocks are used for power and signal wiring.
Remove end plates with ¼" nut driver. For LD4 versions, all wiring is on
right side of unit. For LD2 versions, power and signal wiring connections are
on the right side and the relay and serial output options are on left side.
Wire Strip Length: 0.4" (10 mm)
Wire Gage: 24-12 AWG copper wire
Torque: 5.3 inch-lbs (0.6 N-m) max
11. ENVIRONMENTAL CONDITIONS:
Operating temperature: 0 to 50 °C
Storage temperature: -40 to 70 °C
Operating and storage humidity: 0 to 85% max. RH (non-condensing)
Vibration According to IEC 68-2-6: 5 to 150 Hz, in X, Y, Z direction for 1.5
hours, 2 g’s (1g relay).
Shock According to IEC 68-2-27: Operational 30 g’s (10g relay), 11 msec in
3 directions.
Altitude: Up to 2,000 meters
12. CERTIFICATIONS AND COMPLIANCES:
SAFETY
UL Listed, File # E137808, UL508, CSA C22.2 No. 14-M95
LISTED by Und. Lab. Inc. to U.S. and Canadian safety standards
Type 4X Enclosure rating (Face only), UL50
IEC 61010-1, EN 61010-1: Safety requirements for electrical equipment for
measurement, control, and laboratory use, Part 1.
IP65 Enclosure rating (Face only), IEC 529
ELECTROMAGNETIC COMPATIBILITY
Emissions and Immunity to EN 61326: Electrical Equipment for
Measurement, Control and Laboratory use.
Notes:
1. Criterion A: Normal operation within specified limits.
2. Criterion B: Temporary loss of performance from which the unit self-
recovers.
13. CONSTRUCTION: Aluminum enclosure, and steel side panels with textured
black polyurethane paint for scratch and corrosion resistance protection. Sealed
front panel meets NEMA 4X/IP65 specifications. Installation Category II,
Pollution Degree 2.
14. WEIGHT:
LD2T06P0 - 4.5 lbs (2.04 kg)
LD4T06P0 - 10.5 lbs (4.76 kg)
2.25" High 6-Digit Red LED Timer/Cycle Counter w/
Relay Output & RS232/RS485 Serial Communications
4" High 6-Digit Red LED Timer/Cycle Counter w/ Relay
Output & RS232/RS485 Serial Communications
Class A
Class B
EN 55011
EN 55011
Emissions LD2006P0
Emissions LD200400
Emissions:
0.5 cycle
Criterion A
3 V/rms
EN61000-4-11Voltage dip/interruptions
Criterion AEN 61000-4-6RF conducted interference
1 kV L-L,
Criterion AEN 61000-4-5Surge
1 kV signal
2 kV power
Criterion AEN 61000-4-4Fast transients (burst)
2 kV L&N-E power
10 V/m
Criterion B LD2006P0
Criterion A LD200400EN 61000-4-3Electromagnetic RF fields
8 kV air discharge
4 kV contact discharge
Criterion AEN 61000-4-2Electrostatic discharge
Immunity to Industrial Locations:
1.0 INSTALLING THE METER
INSTALLATION
The meter meets NEMA 4X/IP65 requirements when properly installed.
INSTALLATION ENVIRONMENT
The unit should be installed in a location that does not exceed the operating
temperature. Placing the unit near devices that generate excessive heat should
be avoided. The unit should only be cleaned with a soft cloth and neutral soap
product. Do NOT use solvents.
Continuous exposure to direct sunlight may accelerate the aging process of
the front overlay. Do not use tools of any kind (screwdrivers, pens, pencils, etc.)
to operate the keypad of the unit.
MOUNTING INSTRUCTIONS
This display is designed to be
wall mounted or suspended
from a ceiling truss or other
suitable structure capable
of supporting the LDA.
Caution should be
exercised when hanging
the display to provide for
the safety of personnel. If
hanging the LDA, run the
suspension cables (or chains)
through the mounting bracket
holes. For wall mounting use
#10-32 size bolts.

G
6471-717-767-6511
3.0 WIRING THE METER
2.0 SETTING THE DIP SWITCHES
To access the switches, remove the right side plate of the meter. A bank of eight
switches is located inside the unit. Note: Some switches are not used and should
remain in the factory set position.
Warning: Exposed line voltage exists on the circuit boards.
Remove all power to the meter and load circuits before accessing
inside of the meter.
SWITCH 1 (Unused)
This switch is not used and should remain in the factory set position.
SWITCH 2 (Input A) {See Note 1}
SNK: Adds internal 7.8 KΩpull-up resistor to +12 VDC, IMAX = 2.1 mA.
SRC: Adds internal 3.9 KΩpull-down resistor, 7.2 mA max. @ 28 VDC max.
SWITCH 3 (Input A)
FILTER ON: Provides hardware debounce for Input A to allow relay or
switch contacts to be used as a signal source. Software debounce for Inputs
A and B is provided in the programming menu (Module 1).
SWITCH 4 (Input B) {See Note 1}
SNK: Adds internal 7.8 KΩpull-up resistor to +12 VDC, IMAX = 2.1 mA.
SRC: Adds internal 3.9 KΩpull-down resistor, 7.2 mA max. @ 28 VDC max.
SWITCH 5 (Input B)
FILTER ON: Provides hardware debounce for Input B to allow relay or
switch contacts to be used as a signal source. Software debounce for Inputs
A and B is provided in the programming menu (Module 1).
SWITCH 6 (USER INPUT) {See Note 1}
SNK: Adds internal 7.8 KΩpull-up resistor to +12VDC, IMAX = 2.1 mA.
SRC: Adds internal 3.9 KΩpull-down resistor, 7.2 mA max. @ 28 VDC max.
SWITCH 7 (Unused)
This switch is not used and should remain in the factory set position.
SWITCH 8 (Input B)
NORMAL: Input B performs the normal functions described in the Timer
Input Operation parameter of the programming menu (Module 1).
INTENSITY ADJUST: In this position, Input B is used to adjust the LED
display intensity. Five distinct LED levels can be set by pulsing Input B.
The display intensity level can also be set in the programming menu
(Module 3).
Note 1: When the DIP switch is in the SNK position (OFF), the input is
configured as active low. When the switch is in the SRC position (ON), the
input is configured as active high.
3
4
5
6
7
8ON
SNK
FILTER OFF
FILTER OFF
Reset/User Input SNK
UNUSED
Input B Normal
SRC
ON
ON
SRC
Intensity Adjust
Factory Setting
2
1
SNK
UNUSED
SRC
Input A
Input B
EMC INSTALLATION GUIDELINES
Although this meter is designed with a high degree of immunity to Electro-
Magnetic Interference (EMI), proper installation and wiring methods must be
followed to ensure compatibility in each application. The type of the electrical
noise, source or coupling method into the meter may be different for various
installations. The meter becomes more immune to EMI with fewer I/O
connections. Cable length, routing, and shield termination are very important
and can mean the difference between a successful or troublesome installation.
Listed below are some EMC guidelines for successful installation in an
industrial environment.
1. The meter should be properly connected to protective earth.
2. Use shielded (screened) cables for all Signal and Control inputs. The shield
(screen) pigtail connection should be made as short as possible. The
connection point for the shield depends somewhat upon the application.
Listed below are the recommended methods of connecting the shield, in order
of their effectiveness.
a. Connect the shield only at the panel where the unit is mounted to earth
ground (protective earth).
b. Connect the shield to earth ground at both ends of the cable, usually when
the noise source frequency is above 1 MHz.
c. Connect the shield to common of the meter and leave the other end of the
shield unconnected and insulated from earth ground.
3. Never run Signal or Control cables in the same conduit or raceway with AC
power lines, conductors feeding motors, solenoids, SCR controls, and
heaters, etc. The cables should be ran in metal conduit that is properly
grounded. This is especially useful in applications where cable runs are long
and portable two-way radios are used in close proximity or if the installation
is near a commercial radio transmitter.
4. Signal or Control cables within an enclosure should be routed as far as possible
from contactors, control relays, transformers, and other noisy components.
5. In extremely high EMI environments, the use of external EMI suppression
devices, such as ferrite suppression cores, is effective. Install them on Signal
and Control cables as close to the unit as possible. Loop the cable through the
core several times or use multiple cores on each cable for additional protection.
Install line filters on the power input cable to the unit to suppress power line
interference. Install them near the power entry point of the enclosure. The
following EMI suppression devices (or equivalent) are recommended:
Ferrite Suppression Cores for signal and control cables:
Fair-Rite # 0443167251 (RLC# FCOR0000)
TDK # ZCAT3035-1330A
Steward # 28B2029-0A0
Line Filters for input power cables:
Schaffner # FN610-1/07 (RLC# LFIL0000)
Schaffner # FN670-1.8/07
Corcom # 1 VR3
Note: Reference manufacturer's instructions when installing a line filter.
6. Long cable runs are more susceptible to EMI pickup than short cable runs.
Therefore, keep cable runs as short as possible.
7. Switching of inductive loads produces high EMI. Use of snubbers across
inductive loads suppresses EMI.
Snubber: RLC# SNUB0000.

G
648 www.redlion.net
3.3 SETPOINT (OUTPUT) WIRING
The setpoint relay uses a three position terminal block (TBC) located on the
left side of the LD2 model, and on the right side for the LD4 model.
Terminal 1: NC
Terminal 2: NO
Terminal 3: Relay Common
WIRING OVERVIEW
Electrical connections are made via pluggable terminal blocks located inside
the meter. All conductors should conform to the meter's voltage and current
ratings. All cabling should conform to appropriate standards of good
installation, local codes and regulations. It is recommended that the power
supplied to the meter (DC or AC) be protected by a fuse or circuit breaker. When
wiring the meter, compare the numbers on the label on the back of the meter case
against those shown in wiring drawings for proper wire position. Strip the wire,
leaving approximately 0.4" (10 mm) bare lead exposed (stranded wires should
be tinned with solder.) Insert the lead under the correct screw clamp terminal and
tighten until the wire is secure. (Pull wire to verify tightness.) Each terminal can
accept up to one #14 AWG (2.55 mm) wire, two #18 AWG (1.02 mm), or four
#20 AWG (0.61 mm).
WIRING CONNECTIONS
Internal removable terminal blocks are used for power and signal wiring.
Access to terminal blocks is through conduit fittings. Remove end plates with
¼" nut driver. For LD4 versions, all wiring is on right side of unit. For LD2
versions, power and input wiring connections are on the right side and the relay
and serial connections are on the left side.
DIP switch 6 OFF DIP switch 6 ON
The power wiring is made via the 3 position terminal block (TBA) located
inside the unit (right side). The DC out power is located on TBB (right side).
3.1 POWER WIRING
DC Out Power
Terminal 4: + 24 VDC OUT
Terminal 6: User Common
Power
Terminal 1: VAC/DC +
Terminal 2: VAC/DC -
Terminal 3: Protective Conductor
Terminal
3.2 RESET/USER INPUT WIRING
The Reset/User Input is located on the right side
Terminal 5: Reset/User
Terminal 6: Comm
Sinking Logic Sourcing Logic
LD4
LD2 Right Side
LD2 Left Side

G
6491-717-767-6511
3.4 INPUT WIRING
The Large Display Timer is equipped with two signal inputs, A and B. These
inputs are wired using the six position terminal block (TBB) located inside the
unit on the right side.
Terminal 1: Input A
Terminal 3: Input B
Terminal 2: Input Common
CAUTION: DC common is NOT isolated from input common. In order to preserve the safety of the meter application, the DC common must be suitably
isolated from hazardous live earth referenced voltage; or input common must be at protective earth ground potential. If not, hazardous voltage may
be present at the User Input and Input Common terminals. Appropriate considerations must then be given to the potential of the input common with
respect to earth ground.
Two Wire Proximity, Current Source
Input A
Current Sourcing Output
Input A
Interfacing With TTL
Input A
Current Sinking Output
Input A
Switch or Isolated Transistor; Current Sink
Input A
Switch or Isolated Transistor; Current Source
Input A
*Switch position is application dependent.
communications to take place. This is known as a null modem connection. Most
printers emulate a DCE device while most computers emulate a DTE device.
Some devices cannot accept more than two or three characters in succession
without a pause in between. In these cases, the meter employs a busy function.
As the meter begins to transmit data, the RXD line (RS232) is monitored to
determine if the receiving device is “busy”. The receiving device asserts that it
is busy by setting the RXD line to a space condition (logic 0). The meter then
suspends transmission until the RXD line is released by the receiving device.
RS485 Communications
The RS485 communication standard allows the connection of up to 32
devices on a single pair of wires, distances up to 4,000 ft. and data rates as high
as 10M baud (the LD is limited to 38.4k baud). The same pair of wires is used
to both transmit and receive data. RS485 is therefore always half-duplex, that is,
data cannot be received and transmitted simultaneously.
RS232 Communications
RS232 is intended to allow two devices to communicate over distances up to
50 feet. Data Terminal Equipment (DTE) transmits data on the Transmitted Data
(TXD) line and receives data on the Received Data (RXD) line. Data Computer
Equipment (DCE) receives data on the TXD line and transmits data on the RXD
line. The LD emulates a DTE. If the other device connected to the meter also
emulates a DTE, the TXD and RXD lines must be interchanged for
3.5 SERIAL WIRING
Terminal Block Connection Figure
Terminal Block Connection Figure
The serial connections are made via terminal block TBD located inside the
unit on the left side for the LD2 and on the right side for the LD4.

G
650 www.redlion.net
4.0 REVIEWING THE FRONT PANEL KEYS AND DISPLAY
PROGRAMMING MODE ENTRY (PAR KEY)
It is recommended all programming changes be made off line, or before
installation. The meter normally operates in the Display Mode. No parameters
can be programmed in this mode. The Programming Mode is entered by
pressing the PAR key. If it is not accessible, then it is locked by either a security
code or a hardware lock (See Module 3).
MODULE ENTRY (SELS& PAR KEYS)
The Programming Menu is organized into five modules. These modules group
together parameters that are related in function. The display will alternate between
and the present module. The SELSSkey is used to select the desired module.
The displayed module is entered by pressing the PAR key.
MODULE MENU (PAR KEY)
Each module has a separate module menu (which is shown at the start of each
module discussion). The PAR key is pressed to advance to a particular parameter
to be changed, without changing the programming of preceding parameters.
After completing a module, the display will return to . Programming
may continue by accessing additional modules.
SELECTION / VALUE ENTRY
For each parameter, the display alternates between the present parameter and
the selections/value for that parameter. The SELSSand RSTTTkeys are used to
move through the selections/values for that parameter. Pressing the PAR key,
stores and activates the displayed selection/value. This also advances the meter
to the next parameter.
For numeric values, the value is displayed with one digit flashing (initially the
right most digit). Pressing the RSTTTkey increments the digit by one or the user
can hold the RSTTTkey and the digit will automatically scroll. The SELSSkey
will select the next digit to the left. Pressing the PAR key will enter the value and
move to the next parameter.
PROGRAMMING MODE EXIT (PAR KEY)
The Programming Mode is exited by pressing the PAR key with
displayed. This will commit any stored parameter changes to memory and return
the meter to the Display Mode. (If power loss occurs before returning to the
Display Mode, verify recent parameter changes.)
PROGRAMMING TIPS
It is recommended to start with Module 1 and proceed through each module in
sequence. When programming is complete, it is recommended to record the
parameter programming and lock out parameter programming with the user input
or programming security code.
FACTORY SETTINGS
Factory Settings may be completely restored in Module 3. This is useful when
encountering programming problems.
ALTERNATING SELECTION DISPLAY
In the explanation of the modules, the following dual display with arrows will
appear. This is used to illustrate the display alternating between the parameter
on top and the parameter’s Factory Setting on the bottom. In most cases,
selections and values for the parameter will be listed on the right.
5.0 PROGRAMMING THE METER
OVERVIEW
PROGRAMMING MENU
KEY DISPLAY MODE OPERATION PROGRAMMING MODE OPERATION
PAR Access Programming Mode Store selected parameter and index to next parameter
RSTTT
SELSSSelect display (Timer or Cycle Counter) Advance through selection list/select digit position in
parameter value
OPERATING MODE DISPLAY DESIGNATORS
“” - To the left of the display is the Cycle Counter value.
“ ”- Between digits 5 and 6 indicates the setpoint status.
“ ” - Decimal point to the far right of the display can be programmed to flash
when the timer is running, to provide a “Timer Run” indicator.
If display scroll is enabled, the display will toggle automatically every four seconds between the Timer and Cycle Counter values.
Indicates Program Mode Alternating Display
Factory Settings are shown.
ª
«
Parameter
Selection/Value
Reset value(s) per front panel reset setting Increment selected digit position of parameter value

G
6511-717-767-6511
5.1 MODULE 1 - TIMER INPUT PARAMETERS ()
PARAMETER MENU
ª
«
This parameter determines how the Timer Input Signals affect the Run/Stop
status of the Timer. Timing diagrams are shown below for level active and edge
triggered (1-input or 2-input) operation. For single input modes (Input A only),
Input B provides a level active Timer Inhibit function. In the Display Hold
mode, the timer display value remains held and only updates when a Timer
Start (Input A) or Timer Stop (Input B) edge occurs.
The timer reset () operating modes are identical to the other modes in the
diagrams, except the timer display value is reset at the Time Start edges.
The Timer can also be stopped at a Timer Stop Value or at Setpoint output
activation or deactivation. This type of Stop condition is cleared when a Timer
Reset occurs, or another start edge is applied on the timer input.
For Reset Modes (), the timer is reset at Time Start edge.
18 TIMER RANGE SELECTIONS
( = SEC; = MIN; = HR; = DAY)
TIMER RANGE
ª
«
Level Active (Gated) Operation
INPUT A
INPUT B - Timer Inhibit (Level Active)
Time
Start
Time
Stop
Time
Start
Time
Stop
Edge Triggered Operation -1 Input
INPUT A
INPUT B - Timer Inhibit (Level Active)
Time
Start
Time
Stop
Time
Start
Time
Stop
,
,
TIMER INPUT OPERATION
0.01 HR
1 HR
0.1 HR
HOURS
0.1 MIN
0.01 MIN
MINUTES
1 MIN
0.01 SEC
0.001 SEC
1 SEC
0.1 SEC
MAXIMUM
DISPLAY
DISPLAY
RESOLUTION
RANGE
SELECTION
SECONDS
DAYS/HOURS/MINUTES
1 MIN
1 SEC
HOURS/MINUTES/SECONDS
0.1 MIN
0.01 MIN
HOURS/MINUTES
1 MIN
0.01 SEC
1 SEC
0.1 SEC
MAXIMUM
DISPLAY
DISPLAY
RESOLUTION
RANGE
SELECTION
MINUTES/SECONDS
TIMING DIRECTION
Bi-directional timing capability. Select the timing direction desired for the
application.
to
ª
«
ª
«
ª
«
TIMER INPUT FILTER
Provides a 50 msec software debounce for the Timer Inputs (A and B). Select
when using relays or switch contacts as a signal source.
TIMER START VALUE
The Timer returns to this value whenever a Timer Reset occurs. The value is
entered in the same display format as the Timer Range selected. Non-zero
values are normally used for “timing down” applications, but they can also
provide an offset value when timing up.
Edge Triggered Operation - 2 Input
INPUT A
INPUT B
Time
Start
Time
Start
Time
Stop
Time
Stop
Edge Triggered Operation - 2 Input,
with Display Hold
INPUT A
INPUT B
Time Stop,
Display Update
Time Start,
Display Update
Time Start,
Display Update
Display
Update
, ,
FLASH TIMER RUN INDICATOR
Select to have the Timer Run indicator flash when the timer is running.
ª
«
TIMER STOP VALUE
The Timer stops when this value is reached regardless of the signal levels on
the timer inputs. Selecting displays a sub-menu where the Stop Value is
entered in the same display format as the Timer Range selected. This stop
condition is cleared when a Timer Reset occurs or another start edge is applied
on the timer input. Select if a Stop Value is not desired.
ª
«
TIMER RUN STATE AT POWER-UP
Determines the Run/Stop state of the Timer at Power-up. This parameter
does not apply to Input Operation.
- Timer Stopped at power-up, regardless of prior Run/Stop state
- Timer assumes the Run/Stop state it was in prior to power-down
ª
«
to
ª
«

G
652 www.redlion.net
5.2 MODULE 2 - CYCLE COUNTER PARAMETERS ()
PARAMETER MENU
CYCLE COUNTER ENABLE
When set to , the remaining Cycle Counter parameters are not accessible.
This parameter selects the source from which the Cycle Counter derives
counts. The Timer Reset ()selection generates a count when either a
manual or automatic timer reset occurs (See Module 4 for programming
Automatic Reset). The Input B ( ) selection generates a count each time
Input B is activated. This selection overrides the timer inhibit function of Input
B, when the timer is programmed for Level or Edge-1 operating mode (See
Module 1 for Timer Input Operating Modes).
The User Input ()selection generates a count each time the User
Input is activated. When selected as the count source, the User Input can still be
set to perform a User Function described in Module 1. In this case, the Cycle
Counter will count the number of times the selected User Function occurred.
The Output ON/OFF selections generate a count when the Setpoint output
either activates or deactivates.
CYCLE COUNTER COUNT SOURCE
CYCLE COUNTER START VALUE
CYCLE COUNTER COUNTING DIRECTION
Bi-directional counting capability. Select the counting direction desired for
the application.
The Cycle Counter returns to this value whenever a Counter Reset occurs.
Non-zero values are normally used for “down counting” applications, but can
also provide an offset value when counting up.
to
USER INPUT ASSIGNMENT
The User Input Assignment only applies if the cycle counter is enabled and
a selection of reset, display hold, hold and reset, inhibit, or print and reset is
selected in the User Input Function menu.
USER INPUT FUNCTION
USER INPUT FUNCTION (Cont’d)
MODEDISPLAY
No Function
DESCRIPTION
User Input disabled.
Program Mode Lock-out
Display Select
(Edge triggered)
Toggle display with each
activation.
Maintained Reset
Level active reset of the
selected value(s).
Display Hold
Hold and Reset
Edge triggered reset of the
selected value(s) after
storing the time or count.
See Programming Mode
Access chart (Module 3).
Freeze display for the selected
value(s) while allowing time or
counts to accumulate internally.
ª
«
ª
«
ª
«
ª
«
ª
«
ª
«
CYCLE COUNTER RESET AT POWER-UP
The Cycle Counter can be programmed to Reset at each meter power-up.
ª
«
TIMER RESET AT POWER-UP
The Timer can be programmed to Reset at each meter power-up.
ª
«
Serial transmit of the active
parameters selected in the Print
Options menu (Module 5).
Print Request
Edge triggered deactivation of
the Setpoint Output.
Same as Print Request followed
by a momentary reset of the
selected value(s).
Reset Output
Print and Reset
Inhibit timing or counting for the
selected value(s).
Increase intensity one level
for each activation.
DISPLAY DESCRIPTION
Inhibit
Display Intensity Level
(Edge Triggered)
MODE

G
6531-717-767-6511
The selection allows the SELSSkey to toggle between the timer and cycle
counter displays.
FRONT PANEL DISPLAY SELECT ENABLE (SELS)
5.3 MODULE 3 - DISPLAY AND FRONT PANEL KEY
PARAMETERS ()
PARAMETER MENU
The selection allows the RSTTTkey to reset the selected value(s). The
shaded selections only appear if the cycle counter is enabled.
FRONT PANEL RESET ENABLE (RSTT)
The selection allows the display to automatically scroll between the
timer and cycle counter values. The scroll rate is about every 4 seconds.
DISPLAY SCROLL ENABLE
Enter the desired Display Intensity Level (1-5). The display will actively dim
or brighten as levels are changed.
DISPLAY INTENSITY LEVEL
The Security Code determines the programming mode and the accessibility
of programming parameters. This code can be used along with the Program
Mode Lock-out () in the User Input Function parameter (Module 1).
Two programming modes are available. Full Programming mode allows all
parameters to be viewed and modified. Quick Programming mode permits only
PROGRAMMING SECURITY CODE
The selection will return the meter to the factory default settings. The
meter will display and then return to , at which time all settings have
been changed.
LOAD FACTORY DEFAULT SETTINGS
to
ª
«
ª
«
ª
«
ª
«
ª
«
ª
«
to
USER INPUT
FUNCTION
USER INPUT
STATE
SECURITY
CODE
FULL PROGRAMMING
MODE ACCESS
0Full Programming Immediate Access
not
______ 1-99 Quick
Programming
100-999 prompt With correct code entry
at prompt *
0Programming
Lock No Access
Active 1-99 Quick
Programming No Access
100-999 prompt With correct code entry
at prompt *
Not Active 0-999 Full Programming Immediate Access
After Quick Programming
with correct code entry
at prompt *
* Entering Code 222 allows access regardless of security code.
the Setpoint values and Timer Stop value to be modified, but allows direct
access to these values without having to enter Full Programming mode.
Programming a Security Code other than 0, requires this code to be entered
at the prompt in order to access Full Programming mode. Depending on
the code value, Quick Programming may be accessible before the prompt
appears (see chart).
MODE WHEN “PAR”
KEY IS PRESSED

G
654 www.redlion.net
will restore the output to the same state it was at before the meter was
powered down. will activate the output at power up. will deactivate the
output at power up. This parameter is not active when the Setpoint Action is
selected for timed output mode.
SETPOINT OUTPUT POWER-UP STATE
Stops the Timer when the Setpoint output activates () or deactivates
(). Select if the output should not affect the Timer Run/Stop status.
The Timer Stop condition is cleared when a Timer Reset occurs, or a Time
Start edge is applied on the Timer input.
STOP TIMER
SETPOINT OUTPUT TIME-OUT
SPT ACTION DESCRIPTION OUTPUT ACTIVATES OUTPUT DEACTIVATES
Latched Output Mode When Time or Count
= Setpoint On value
At Manual Reset
(if = )
Timed Output Mode When Time or Count
= Setpoint On value
After Setpoint
Output Time-Out
On-Off Output Mode When Time or Count
= Setpoint On value
When Time or Count
= Setpoint Off value
This parameter is only active if the Setpoint Action is set to Timed Output mode
(). Enter the time duration the Setpoint Output will remain ON once it is
activated. This value is always entered in minutes, seconds, and hundredths of
seconds format. The maximum value is 99 minutes 59.99 seconds.
to
SETPOINT ON
This parameter determines when the Setpoint output will activate. The output
can activate at a programmed Setpoint Value or can be set to activate when the
Timer starts () or stops ().
Selecting displays a sub-menu where the Setpoint Value is entered. If
the Setpoint is assigned to the Timer, the value is entered in the same display
format as the selected Timer Range.
Automatically resets the Setpoint Assigned display value when the Setpoint
Output activates () or deactivates (). Select if the output should
not cause a display reset.
TIMER/COUNTER AUTO RESET
Select to have the Setpoint Output deactivate (reset) when the Setpoint
Assigned display resets. Reset can occur by the RSTTkey or the User Input,
if programmed for that function. Select if the Setpoint output should not
reset when the display resets.
SETPOINT OUTPUT RESET WITH DISPLAY RESET
ª
«
ª
«
SETPOINT OFF
The Setpoint Off parameter only appears if the Setpoint Action is set to On-
Off Output mode (). In this mode, the Setpoint OFF parameter
determines when the Setpoint Output will deactivate. The output can be
programmed to deactivate at a Setpoint Off Value or can be set to deactivate
when the Timer starts () or stops ().
Selecting displays a sub-menu where the Setpoint Off Value is
entered. If the Setpoint is assigned to the Timer, the value is entered in the same
display format as the selected Timer Range.
ª
«
ª
«
ª
«
ª
«
ª
«
5.4 MODULE 4 - SETPOINT OUTPUT PARAMETERS ()
PARAMETER MENU
Module 4 is the programming module for the Setpoint Output parameters.
Some parameters will not appear depending on the Setpoint Assignment and
Setpoint Output Action selected.
Select the display for Setpoint assignment.
SETPOINT ASSIGNMENT
ª
«
SETPOINT OUTPUT ACTION
This parameter selects the action of the Setpoint output as shown below.
ª
«
to
ª
«
to
ª
«

G
6551-717-767-6511
DATA BIT
ABBREVIATED PRINTING
PRINT OPTIONS
PARITY BIT
METER ADDRESS
Module 5 is the programming module for the Serial Communications
Parameters. These parameters are used to match the serial settings of the meter
with those of the host computer or other serial device.
5.5 MODULE 5 - SERIAL COMMUNICATIONS PARAMETERS ()
PARAMETER MENU
BAUD RATE
Set the baud rate to match that of other serial communications equipment.
Normally, the baud rate is set to the highest value that all of the serial
communications equipment is capable of transmitting and receiving.
Select either 7- or 8-bit data word length. Set the word length to match the
other serial communications equipment on the serial link.
This parameter only appears when the Data Bit parameter is set to a 7-bit
data word length. Set the parity bit to match that of the other serial equipment
on the serial link. The meter ignores parity when receiving data and sets the
parity bit for outgoing data. If parity is set to , an additional stop bit is used
to force the frame size to 10 bits.
Enter the serial node address. With a single unit, an address is not needed
and a value of zero can be used (RS232 applications). Otherwise, with multiple
bussed units, a unique address number must be assigned to each meter. The
node address applies specifically to RS485 applications.
This parameter determines the formatting of data transmitted from the meter
in response to a Transmit Value command or a Block Print Request. Select
for a full print transmission, consisting of the meter address, mnemonics, and
parameter data. Select for abbreviated print transmissions, consisting of the
parameter data only. This setting is applied to all the parameters selected in the
PRINT OPTIONS. (Note: If the meter address is 0, the address will not be sent
during a full transmission.)
ª
«
ª
«
ª
«
ª
«
ª
«
ª
«
to
This parameter selects the meter values transmitted in response to a Print
Request. A print request is also referred to as a block print because more than
one parameter can be sent to a printer or computer as a block.
Selecting displays a sublist for choosing the meter parameters to appear
in the print block. All active parameters entered as in the sublist will be
transmitted during a block print. Parameters entered as will not be sent.
The “Print All” () option selects all meter values for transmitting
(), without having to individually select each parameter in the sublist.
Note: Inactive parameters will not be sent regardless of the print option
setting. For example, the Cycle Counter and Cycle Counter Start values will
only be sent when the Cycle Counter is enabled. If disabled, these parameters
are inactive and will not be transmitted. Likewise, only the Setpoint parameters
that apply to the programmed Setpoint Output Action will be transmitted.
DISPLAY MNEMONIC
Timer TMR
Cycle Counter CNT
Timer Stop
Timer Start
TSP
TST
CST
SPT
Setpoint Time-out
Setpoint OFF
STO
SOF
DESCRIPTION FACTORY
SETTING
Counter Start
Setpoint ON

G
656 www.redlion.net
Command String Construction
The command string must be constructed in a specific sequence. The meter
does not respond with an error message to illegal commands. The following
procedure details construction of a command string:
1. The first 2 or 3 characters consist of the Node Address Specifier (N) followed
by a 1 or 2 character node address number. The node address number of the
meter is programmable. If the node address is 0, this command and the node
address itself may be omitted. This is the only command that may be used in
conjunction with other commands.
2. After the optional address specifier, the next character is the command
character.
3. The next character is the register ID. This identifies the register that the
command affects. The P command does not require a register ID character. It
prints all the active selections chosen in the Print Options menu parameter.
4. If constructing a value change command (writing data), the numeric data is
sent next.
5. All command strings must be terminated with the string termination
characters * or $. The meter does not begin processing the command string
until this character is received. See timing diagram figure for differences in
meter response time when using the * and $ terminating characters.
Command String Examples:
1. Node address = 17, Write 350 to the Setpoint On value
String: N17VF350$
2. Node address = 5, Read Timer value, response time of 50 msec min
String: N5TA*
3. Node address = 0, Reset Setpoint output
String: RF*
4. Node address = 31, Request a Block Print Output, response time of 2 msec min
String: N31P$
Transmitting Data to the Meter
Numeric data sent to the meter must be limited to Transmit Details listed in the
Register Identification Chart. Leading zeros are ignored. The meter ignores any
decimal point and conforms the number to the appropriate display format. (For
example: The Timer range is set for tenths of a second and 25 is written to the
Timer Start register. The value of the register is now 2.5 seconds. In this case,
write a value of 250 to equal 25.0 seconds).
Note: Since the meter does not issue a reply to value change commands, follow
with a transmit value command for readback verification.
Sending Serial Commands and Data
When sending commands to the meter, a string containing at least one
command character must be constructed. A command string consists of a
command character, a value identifier, numerical data (if writing data to the
meter) followed by a command terminator character, * or $.
Command Chart
Register Identification Chart
ID Value Description MNEMONIC Transmit Details (T and V)
A Timer TMR 6 digit, per Timer Range
BCycle Counter CNT 5 digit
D
C
Timer Stop
Timer Start
TSP
TST
6 digit, per Timer Range
6 digit, per Timer Range
ECounter Start CST 5 digit
FSetpoint ON
(Reset Output) SPT per Setpoint Assignment,
same as Timer or Counter
H
G
Setpoint
Time-out
Setpoint OFF
STO
SOF
6 digit, mm.ss.ss format
per Setpoint Assignment,
same as Timer or Counter
T, V, R
T, V, R
T, V
T, V
T, V
T, V, R
T, V
T, V
Receiving Data From The Meter
Data is transmitted from the meter in response to either a transmit command
(T), a block print request command (P) or a User Input print request. The
response from the meter is either a full field transmission or an abbreviated
transmission, depending on the selection chosen in Module 5.
Full Field Transmission
* These characters only appear in the last line of a block print.
The first two characters transmitted are the meter address. If the address
assigned is 0, two spaces are substituted. A space follows the meter address field.
The next three characters are the register mnemonic, as shown in the Register
Identification Chart.
The numeric data is transmitted next. The numeric field (bytes 7 to 18) is 12
characters long. When a display overflow exists for a requested timer or cycle
counter value, an * (used as an overflow character) replaces a space in byte 7.
Byte 8 is always a space.
The remaining ten positions of this field consist of seven positions for the
requested value with decimal points positioned for the selected timer range. The
data within bytes 9 to 18 is right-aligned with leading spaces for any unfilled
positions.
The end of the response string is terminated with a <CR> and <LF>. After the
last line of a block print, an extra <SP>, <CR> and <LF> are added to provide
separation between the print blocks.
Abbreviated Transmission
* These characters only appear in the last line of a block print.
The abbreviated response suppresses the node address and register
mnemonic, leaving only the numeric part of the response.
Meter Response Examples:
1. Node address = 17, full field response, Cycle Counter = 875
17 CNT 875 <CR><LF>
2. Node address = 0, full field response, Setpoint On value = 250.5
SPT 250.5<CR><LF>
3. Node address = 0, abbreviated response, Setpoint On value= 250, last line of
block print
250<CR><LF><SP><CR><LF>
Byte Description
1, 2 2 byte Node Address field [00-99]
3<SP> (Space)
4-6 3 byte Register Mnemonic field
7-18
19 <CR> (carriage return)
20 <LF> (line feed)
21 <SP>* (Space)
22 <CR>* (carriage return)
23 <LF>* (line feed)
Byte Description
1-12 12 byte data field, 9 bytes for number and three bytes for
decimal points
13 <CR> (carriage return)
14 <LF> (line feed)
15 <SP>* (Space)
16 <CR>* (carriage return)
17 <LF>* (line feed)
12 byte data field; 9 bytes for number and three bytes for decimal
points
Applicable
Commands
Initiates a block print output. Registers in the
print block are selected in Print Options.
Block Print Request
(read)
P
Reset a value or the output. Must be followed
by a register ID character
ResetR
Write to register of the meter. Must be
followed by a register ID character and
numeric data.
Value Change (write)V
Read a register from the meter. Must be
followed by a register ID character.
Transmit Value (read)T
Address a specific meter. Must be followed by
one or two digit node address. Not required
when node address = 0.
Node (meter)
Address Specifier
N
NotesDescriptionCommand

G
6571-717-767-6511
Command Response Time
The meter can only receive data or transmit data at any one time (half-duplex
operation). During RS232 transmissions, the meter ignores commands while
transmitting data, but instead uses RXD as a busy signal. When sending
commands and data to the meter, a delay must be imposed before sending
another command. This allows enough time for the meter to process the
command and prepare for the next command.
At the start of the time interval t1, the computer program prints or writes the
string to the com port, thus initiating a transmission. During t1, the command
characters are under transmission and at the end of this period, the command
terminating character (* or $) is received by the meter. The time duration of t1
is dependent on the number of characters and baud rate of the channel.
t1= (10 times the # of characters) / baud rate
At the start of time interval t2, the meter starts the interpretation of the
command and when complete, performs the command function. This time
interval t2varies. If no response from the meter is expected, the meter is ready
to accept another command.
If the meter is to reply with data, the time interval t2is controlled by the use
of the command terminating character. The ‘*’ terminating character results in
a response time of 50 msec. minimum. This allows sufficient time for the
release of the sending driver on the RS485 bus. Terminating the command line
with ‘$’ results in a response time (t2) of 2 msec. minimum. The faster response
time of this terminating character requires that sending drivers release within 2
msec. after the terminating character is received.
At the beginning of time interval t3, the meter responds with the first
character of the reply. As with t1, the time duration of t3is dependent on the
number of characters and baud rate of the channel. At the end of t3, the meter is
ready to receive the next command.
t3= (10 times the # of characters) / baud rate
The maximum serial throughput of the meter is limited to the sum of the
times t1, t2and t3.
Timing Diagram Figure
Communication Format
Data is transferred from the meter through a serial communication channel.
In serial communications, the voltage is switched between a high and low level
at a predetermined rate (baud rate) using ASCII encoding. The receiving device
reads the voltage levels at the same intervals and then translates the switched
levels back to a character. The voltage level conventions depend on the interface
standard. The table lists the voltage levels for each standard.
Data is transmitted one byte at a time with a variable idle period between
characters (0 to ∞). Each ASCII character is “framed” with a beginning start bit,
an optional parity bit and one or more ending stop bits. The data format and
baud rate must match that of other equipment in order for communication to
take place. The figures list the data formats employed by the meter.
Start Bit and Data Bits
Data transmission always begins with the start bit. The start bit signals the
receiving device to prepare for reception of data. One bit period later, the least
significant bit of the ASCII encoded character is transmitted, followed by the
remaining data bits. The receiving device then reads each bit position as they are
transmitted.
Parity Bit
After the data bits, the parity bit is sent. The transmitter sets the parity bit to
a zero or a one, so that the total number of ones contained in the transmission
(including the parity bit) is either even or odd. This bit is used by the receiver
to detect errors that may occur to an odd number of bits in the transmission.
However, a single parity bit cannot detect errors that may occur to an even
number of bits. Given this limitation, the parity bit is often ignored by the
receiving device. The LD Timer ignores the parity bit of incoming data and sets
the parity bit to odd, even or none (mark parity) for outgoing data.
Stop Bit
The last character transmitted is the stop bit. The stop bit provides a single bit
period pause to allow the receiver to prepare to re-synchronize to the start of a
new transmission (start bit of next byte). The receiver then continuously looks
for the occurrence of the start bit. If 7 data bits and no parity is selected, then 2
stop bits are sent from the meter.
Character Frame Figure
LOGIC RS232* RS485*INTERFACE STATE
1TXD,RXD; -3 to -15 V a-b < -200 mVmark (idle)
0TXD,RXD; +3 to +15 V a-b > +200 mVspace (active)
* Voltage levels at the Receiver

G
658 www.redlion.net
LD TIMER PROGRAMMING QUICK OVERVIEW
Press PAR key to enter
Programming Mode.

G
6591-717-767-6511
GENERAL DESCRIPTION
The Large Display is a versatile display available as a DC volt, current, or
process meter with scaling, serial communications and dual relay outputs. The 5
digit displays are available in either 2.25" or 4" high red LED digits with
adjustable display intensities. The 2.25" high models are readable up to 130 feet.
The 4" high models are readable up to 180 feet. Both versions are constructed
of a NEMA 4X enclosure in light weight aluminum.
All models also come with dual Form C relay outputs and RS232 / RS485
serial communications.
SAFETY SUMMARY
All safety regulations, local codes and instructions that appear in this and
corresponding literature, or on equipment, must be observed to ensure personal
safety and to prevent damage to either the instrument or equipment connected to
it. If equipment is used in a manner not specified by the manufacturer, the
protection provided by the equipment may be impaired.
SPECIFICATIONS
1. DISPLAY: 5 digit, 2.25" (57 mm) or 4" (101 mm) intensity adjustable Red LED
(-99999 to 99999)
2. POWER REQUIREMENTS:
AC POWER: 50 to 250 VAC 50/60 Hz, 26 VA
DC POWER: 21.6 to 250 VDC, 11 W
DC Out: +24 VDC @ 100 mA if input voltage is greater than 50 VAC/VDC
+24 VDC @ 50 mA if input voltage is less than 50 VDC
Isolation: 2300 Vrms for 1 min. to all inputs and outputs
3. INPUT RANGES: Jumper Selectable
D.C. Voltages: 200 mV, 2 V, 20 V, 200 V, 10 V
D.C. Currents: 200 μA, 2 mA, 20 mA, 200 mA
D.C. Process: 4 to 20 mA, 1 to 5 VDC, 0/1 to 10 VDC
4. OVERRANGE/UNDERRANGE INDICATION:
Input Overrange Indication: “OLOL”.
Input Underrange Indication: “ULUL”.
Display Overrange/Underrange Indication: “.....”/“-.....”
5. A/D CONVERTER: 16 bit resolution
A/D Conversion Rate: 6 readings/sec.
z2.25" & 4" HIGH RED LED DIGITS
zPROGRAMMABLE SCALING AND DECIMAL POINTS
zPROGRAMMABLE USER INPUT
zDUAL 5 AMP FORM C RELAY
zALUMINUM NEMA 4X CASE CONSTRUCTION
zRS232/RS485 SERIAL COMMUNICATIONS
zUNIVERSALLY POWERED
MODEL LD - LARGE DC VOLT/CURRENT/PROCESS DISPLAY
DIMENSIONS In inches (mm)
CAUTION: Risk of Danger.
Read complete instructions prior to
installation and operation of the unit.
CAUTION: Risk of electric shock.
INPUT
RANGE
INPUT
IMPEDANCE
MAX
INPUT
SIGNAL
RESOLUTION TEMP.
COEFFICIENT
200 mV 0.1% of span 1.027 MΩ75 VDC 10 µV 70 ppm /°C
2 V 0.1% of span 1.027 MΩ75 VDC 0.1 mV 70 ppm /°C
20 V 0.1% of span 1.027 MΩ250 VDC 1 mV 70 ppm /°C
10 V
200 V
0.1% of span
0.1% of span
538 KΩ
1.027 MΩ
30 V
250 VDC
1 mV
10 mV
70 ppm /°C
70 ppm /°C
ACCURACY @
23 °°C LESS
THAN 85% RH
INPUT
RANGE
INPUT
IMPEDANCE
MAX
INPUT
SIGNAL
RESOLUTION TEMP.
COEFFICIENT
200 µΑ0.1% of span 1.111 KΩ15 mA 10 nA 70 ppm /°C
2 mA 0.1% of span 111 Ω50 mA 0.1 µA 70 ppm /°C
20 mA 0.1% of span 11 Ω150 mA 1 µA 70 ppm /°C
200 mA 0.1% of span 1 Ω500 mA 10 µA 70 ppm /°C
ACCURACY @
23 °°C LESS
THAN 85% RH
22 (558.8)
12 (304.3)
Z (Center)
7.875 (200)26 (660.4)LD4A05P0
4 (101.6)16 (406.4)LD2A05P0
Y (Height)X (Length)
PART
NUMBER
ORDERING INFORMATION
MODEL NO. DESCRIPTION PART NUMBER
LD2A05P0LD2A
LD4A05P0LD4A
2.25" High 5 Digit Red LED Volt/Current Meter w/
Relay Output and RS232/RS485 Serial Comms
4" High 5 Digit Red LED Volt/Current Meter w/
Relay Output and RS232/RS485 Serial Comms
The protective conductor terminal is bonded to conductive
parts of the equipment for safety purposes and must be
connected to an external protective earthing system.
INPUT RANGE SELECT RANGE
4 - 20 mA Use the 20 mA range
1 - 5 VDC Use the 10V range
1 - 10 VDC Use the 10V range
C
C
US LISTED
US LISTED
UL
R
IND. CONT. EQ.
51EB
C
C
US LISTED
US LISTED
UL
R
LABORATORY EQUIPMENT
3RSD

G
660 www.redlion.net
6. DISPLAY RESPONSE TIME: 500 msec min.
7. USER INPUT:
Software selectable pull-up (8.6 KΩ) or pull-down resistor
(3.9 KΩ) that determines active high or active low input logic.
Trigger levels: VIL = 1.0 V max; VIH = 2.4 V min; VMAX = 28 VDC
Response Time: 5 msec typ.; 50 msec debounce (activation and release)
8. COMMUNICATIONS:
Type: RS485 or RS232
Isolation To Sensor & User Input Commons: 500 Vrms for 1 min.
Working Voltage: 50 V. Not Isolated from all other commons.
Data: 7/8 bits
Parity: no, odd or even
Baud Rate: 300 to 38.4 K
Bus Address: Selectable 0 to 99, Max. 32 meters per line (RS485)
9. MEMORY: Nonvolatile E2PROM retains all programming parameters and
max/min values when power is removed.
10. OUTPUT:
Type: Single FORM-C relay
Isolation To Sensor & User Input Commons: 1400 Vrms for 1 min.
Working Voltage: 150 Vrms
Contact Rating: 5 amps @ 120/240 VAC or 28 VDC (resistive load), 1/8
H.P. @ 120 VAC (inductive load)
Life Expectancy: 100,000 minimum operations
Response Time:
Turn On Time: 4 msec max.
Turn Off Time: 4 msec max.
11. ENVIRONMENTAL CONDITIONS:
Operating temperature: 0 to 50 °C
Storage temperature: -40 to 70 °C
Operating and storage humidity: 0 to 85% max. RH (non-condensing)
Vibration According to IEC 68-2-6: Operational 5 to 150 Hz, in X, Y, Z
direction for 1.5 hours, 2 g’s (1 g relay).
Shock According to IEC 68-2-27: Operational 30 g’s (10 g relay), 11 msec
in 3 directions.
Altitude: Up to 2,000 meters
12. CONNECTIONS:Internal removable terminal blocks
Wire Strip Length: 0.4" (10 mm)
Wire Gage: 24-12 AWG copper wire
Torque: 5.3 inch-lbs (0.6 N-m) max.
Cable Diameter: Outside diameter must be 0.181" (4.6 mm) to 0.312" (7.9
mm) to maintain NEMA 4 rating of cord grips.
13. CONSTRUCTION: Aluminum enclosure, and steel side panels with textured
black polyurethane paint for scratch and corrosion resistance protection. Sealed
front panel meets NEMA 4X/IP65 specifications. Installation Category II,
Pollution Degree 2.
14. CERTIFICATIONS AND COMPLIANCES:
SAFETY
UL Listed, File # E137808, UL508, CSA C22.2 No. 14-M95
File # E179259, UL61010A-1, CSA C22.2 No. 61010-1
LISTED by Und. Lab. Inc. to U.S. and Canadian safety standards
Type 4X Enclosure rating, UL50
IECEE CB Scheme Test Certificate #US/8843B/UL
CB Scheme Test Report #04ME11209-20041018
Issued by Underwriters Laboratories, Inc.
IEC 61010-1, EN 61010-1: Safety requirements for electrical equipment
for measurement, control, and laboratory use, Part 1.
IP65 Enclosure rating, IEC 529
ELECTROMAGNETIC COMPATIBILITY
Emissions and Immunity to EN 61326: Electrical Equipment for
Measurement, Control and Laboratory use.
Notes:
1. Criterion A: Normal operation within specified limits.
2. Criterion B: Temporary loss of performance from which the unit self-
recovers.
15. WEIGHT:
LD2A05XX - 4.5 lbs (2.04 kg)
LD4A05XX - 10.5 lbs (4.76 kg)
1.0 INSTALLING THE METER
Class AEN 55011Emissions
0.5 cycle
Criterion AEN 61000-4-11
Emissions:
Voltage dip/interruptions
3 V/rms
Criterion BEN 61000-4-6RF conducted interference
1 kV L-L,
Criterion AEN 61000-4-5Surge
1 kV signal
2 kV power
Criterion BEN 61000-4-4Fast transients (burst)
2 kV L&N-E power
10 V/m
Criterion BEN 61000-4-3Electromagnetic RF fields
8 kV air discharge
4 kV contact discharge
Criterion BEN 61000-4-2Electrostatic discharge
Immunity to Industrial Locations:
INPUT RANGE JUMPER
This jumper is used to select the proper input range. The input range selected
in programming must match the jumper setting. Select a range that is high
enough to accommodate the maximum signal input to avoid overloads. To
access the jumper, remove the side cover of the meter.
Warning: Exposed line voltage exists on the circuit boards.
Remove all power to the meter and load circuits before accessing
inside of the meter.
2.0 SETTING THE JUMPERS
INSTALLATION
The meter meets NEMA 4X/IP65 requirements when properly installed.
INSTALLATION ENVIRONMENT
The unit should be installed in a location that does not exceed the operating
temperature. Placing the unit near devices that generate excessive heat should be
avoided. The unit should only be cleaned with a soft cloth and neutral soap
product. Do NOT use solvents.
Continuous exposure to direct sunlight may accelerate the aging process of
the front overlay. Do not use tools of any kind (screwdrivers, pens, pencils, etc.)
to operate the keypad of the unit.
MOUNTING INSTRUCTIONS
This display is designed to be
wall mounted or suspended
from a ceiling truss or
other suitable structure
capable of supporting the
LDA. Caution should be
exercised when hanging
the display to provide for
the safety of personnel. If
hanging the LDA, run the
suspension cables (or chains)
through the mounting bracket
holes. For wall mounting use
#10-32 size bolts.

G
6611-717-767-6511
3.0 WIRING THE METER
EMC INSTALLATION GUIDELINES
Although this meter is designed with a high degree of immunity to Electro-
Magnetic Interference (EMI), proper installation and wiring methods must be
followed to ensure compatibility in each application. The type of the electrical
noise, source or coupling method into the meter may be different for various
installations. The meter becomes more immune to EMI with fewer I/O
connections. Cable length, routing, and shield termination are very important
and can mean the difference between a successful or troublesome installation.
Listed below are some EMC guidelines for successful installation in an
industrial environment.
1. The meter should be properly connected to protective earth.
2. Use shielded (screened) cables for all Signal and Control inputs. The shield
(screen) pigtail connection should be made as short as possible. The
connection point for the shield depends somewhat upon the application.
Listed below are the recommended methods of connecting the shield, in order
of their effectiveness.
a. Connect the shield only at the panel where the unit is mounted to earth
ground (protective earth).
b. Connect the shield to earth ground at both ends of the cable, usually when
the noise source frequency is above 1 MHz.
c. Connect the shield to common of the meter and leave the other end of the
shield unconnected and insulated from earth ground.
3. Never run Signal or Control cables in the same conduit or raceway with AC
power lines, conductors feeding motors, solenoids, SCR controls, and
heaters, etc. The cables should be ran in metal conduit that is properly
grounded. This is especially useful in applications where cable runs are long
and portable two-way radios are used in close proximity or if the installation
is near a commercial radio transmitter.
4. Signal or Control cables within an enclosure should be routed as far as
possible from contactors, control relays, transformers, and other noisy
components.
5. In extremely high EMI environments, the use of external EMI suppression
devices, such as ferrite suppression cores, is effective. Install them on Signal
and Control cables as close to the unit as possible. Loop the cable through the
core several times or use multiple cores on each cable for additional protection.
Install line filters on the power input cable to the unit to suppress power line
interference. Install them near the power entry point of the enclosure. The
following EMI suppression devices (or equivalent) are recommended:
Ferrite Suppression Cores for signal and control cables:
Fair-Rite # 0443167251 (RLC# FCOR0000)
TDK # ZCAT3035-1330A
Steward # 28B2029-0A0
Line Filters for input power cables:
Schaffner # FN610-1/07 (RLC# LFIL0000)
Schaffner # FN670-1.8/07
Corcom # 1 VR3
Note: Reference manufacturer's instructions when installing a line filter.
6. Long cable runs are more susceptible to EMI pickup than short cable runs.
Therefore, keep cable runs as short as possible.
7. Switching of inductive loads produces high EMI. Use of snubbers across
inductive loads suppresses EMI.
Snubber: RLC# SNUB0000.
WIRING OVERVIEW
Electrical connections are made via pluggable terminal blocks located inside
the meter. All conductors should conform to the meter's voltage and current
ratings. All cabling should conform to appropriate standards of good
installation, local codes and regulations. It is recommended that the power
supplied to the meter (DC or AC) be protected by a fuse or circuit breaker. When
wiring the meter, compare the numbers on the label on the back of the meter case
against those shown in wiring drawings for proper wire position. Strip the wire,
leaving approximately 0.4" (10 mm) bare lead exposed (stranded wires should
be tinned with solder.) Insert the lead under the correct screw clamp terminal and
tighten until the wire is secure. (Pull wire to verify tightness.) Each terminal can
accept up to one #14 AWG (2.55 mm) wire, two #18 AWG (1.02 mm), or four
#20 AWG (0.61 mm).
WIRING CONNECTIONS
Internal removable terminal
blocks are used for power and
signal wiring. Access to
terminal blocks is through
conduit fittings. Remove end
plates with ¼" nut driver. For
LD4 versions, all wiring is on
right side of unit. For LD2
versions, power and relay
wiring is on the right side and
the input, serial, DC out and
user input is on the left side.
Connect drain wire from
shielded cable(s) to screw on
side plate for proper grounding.
LD2
RIGHT SIDE VIEW LEFT SIDE VIEW
LD4
The power wiring is made via the 3 position terminal block (TBA) located
inside the unit (right side). The DC out power is located: LD2 - left side, LD4
- right side
3.1 POWER WIRING
DC Out Power
Terminal 4: + 24 VDC OUT
Terminal 6: User Common
Power
Terminal 1: VAC/DC +
Terminal 2: VAC/DC -
Terminal 3: Protective Conductor
Terminal

G
662 www.redlion.net
3.4 INPUT WIRING
3.2 USER INPUT WIRING
CAUTION: Analog common is NOT isolated from user input
common. In order to preserve the safety of the meter
application, the DC common must be suitably isolated from
hazardous live earth referenced voltage; or input common must
be at protective earth ground potential. If not, hazardous
voltage may be present at the User Input and Input Common
terminals. Appropriate considerations must then be given to the
potential of the input common with respect to earth ground.
Always connect the analog signal common to terminal 2.
The User Input is located: LD2 - left side, LD4 - right side
Terminal 5: User Input
Terminal 6: User Comm
3.3 SETPOINT (OUTPUT) WIRING
The setpoint relays use a six position terminal block (TBB) located inside the
(right side).
Terminal 1: NC 1
Terminal 2: NO 2
Terminal 3: Relay 1 Common
Terminal 4: NC 1
Terminal 5: NO 2
Terminal 6: Relay 2 Common
Sinking Logic Sourcing Logic
Current Signal
(self powered)
Terminal 3: +ADC
Terminal 2: -ADC
Voltage Signal
(self powered)
Terminal 1: +VDC
Terminal 2: -VDC
Current Signal (2 wire
requiring excitation)
Terminal 4: +EXC
Terminal 3: +ADC
3.5 INPUT SIGNAL WIRING
Current Signal (3 wire
requiring excitation)
Terminal 3: +ADC (signal)
Terminal 2: -ADC (common)
Terminal 4: +EXC
Voltage Signal (3 wire
requiring excitation)
Terminal 1: +VDC (signal)
Terminal 2: -VDC (common)
Terminal 4: +EXC
Before connecting signal wires, the Input Range Jumper should be verified
for proper position.

G
6631-717-767-6511
communications to take place. This is known as a null modem connection. Most
printers emulate a DCE device while most computers emulate a DTE device.
Some devices cannot accept more than two or three characters in succession
without a pause in between. In these cases, the meter employs a busy function.
As the meter begins to transmit data, the RXD line (RS232) is monitored to
determine if the receiving device is “busy”. The receiving device asserts that it
is busy by setting the RXD line to a space condition (logic 0). The meter then
suspends transmission until the RXD line is released by the receiving device.
RS485 Communications
The RS485 communication standard allows the connection of up to 32
devices on a single pair of wires, distances up to 4,000 ft. and data rates as high
as 10M baud (the LDA is limited to 38.4k baud). The same pair of wires is used
to both transmit and receive data. RS485 is therefore always half-duplex, that is,
data cannot be received and transmitted simultaneously.
RS232 Communications
RS232 is intended to allow two devices to communicate over distances up to
50 feet. Data Terminal Equipment (DTE) transmits data on the Transmitted Data
(TXD) line and receives data on the Received Data (RXD) line. Data Computer
Equipment (DCE) receives data on the TXD line and transmits data on the RXD
line. The LD emulates a DTE. If the other device connected to the meter also
emulates a DTE, the TXD and RXD lines must be interchanged for
3.6 SERIAL WIRING
Terminal Block Connection Figure
Terminal Block Connection Figure
4.0 REVIEWING THE FRONT BUTTONS AND DISPLAY
BUTTON DISPLAY MODE OPERATION PROGRAMMING MODE OPERATION
PAR Access Programming Mode Store selected parameter and index to next parameter
RSTTT
SELSS
Resets display
Index display through selected displays
OPERATING MODE DISPLAY DESIGNATORS
MAX - Maximum display capture value
MIN - Minimum display capture value
“1” - To the left of the display indicates setpoint 1 output activated.
“2” - To the left of the display indicates setpoint 2 output activated.
Pressing the SELSSbutton toggles the meter through the selected displays. If display scroll is enabled, the display will toggle automatically every four seconds
between the enabled display values.
Advance through selection list/select digit position in
parameter value
Increment selected digit of parameter value
The serial connections are made via terminal block TBD located inside the
unit on the left side for the LD2 and on the right side for the LD4.

G
664 www.redlion.net
PROGRAMMING MODE ENTRY (PAR BUTTON)
It is recommended all programming changes be made off line, or before
installation. The meter normally operates in the Display Mode. No parameters
can be programmed in this mode. The Programming Mode is entered by
pressing the PAR button. If it is not accessible, then it is locked by either a
security code or a hardware lock.
MODULE ENTRY (SELS& PAR BUTTONS)
The Programming Menu is organized into five modules. These modules group
together parameters that are related in function. The display will alternate between
Pro and the present module. The SELSSbutton is used to select the desired
module. The displayed module is entered by pressing the PAR button.
MODULE MENU (PAR BUTTON)
Each module has a separate module menu (which is shown at the start of each
module discussion). The PAR button is pressed to advance to a particular
parameter to be changed, without changing the programming of preceding
parameters. After completing a module, the display will return to Pro NO.
Programming may continue by accessing additional modules.
SELECTION / VALUE ENTRY
For each parameter, the display alternates between the present parameter and
the selections/value for that parameter. The SELSSand RSTTTbuttons are used to
move through the selections/values for that parameter. Pressing the PAR button,
stores and activates the displayed selection/value. This also advances the meter to
the next parameter.
For numeric values, the value is displayed with one digit flashing (initially
the right most digit). Pressing the RSTSSbutton increments the digit by one or
the user can hold the RSTSSbutton and the digit will automatically scroll. The
SELTTbutton will select the next digit to the left. Pressing the PAR button will
enter the value and move to the next parameter.
PROGRAMMING MODE EXIT (PAR BUTTON)
The Programming Mode is exited by pressing the PAR button with Pro NO
displayed. This will commit any stored parameter changes to memory and
return the meter to the Display Mode. (If power loss occurs before returning to
the Display Mode, verify recent parameter changes.)
PROGRAMMING TIPS
It is recommended to start with Module 1 and proceed through each module in
sequence. When programming is complete, it is recommended to record the
parameter programming and lock out parameter programming with the user input
or programming security code.
FACTORY SETTINGS
Factory Settings may be completely restored in Module 2. This is useful
when encountering programming problems.
ALTERNATING SELECTION DISPLAY
In the explanation of the modules, the following dual display with arrows will
appear. This is used to illustrate the display alternating between the parameter
on top and the parameter’s Factory Setting on the bottom. In most cases,
selections and values for the parameter will be listed on the right.
Indicates Program Mode Alternating Display
Factory Settings are shown.
Parameter
Selection/Value
ª
«
N0
USrIN
5.0 PROGRAMMING THE METER
OVERVIEW
PROGRAMMING MENU
5.1 MODULE 1 - SIGNAL INPUT PARAMETERS (1-INP)
PARAMETER MENU
ª
«
200v
rAN6E
INPUT RANGE
Select the input range that corresponds to the external signal. This selection
should be high enough to avoid input signal overload but low enough for the
desired input resolution. This selection and the position of the Input Range
Jumper must match.
200uA 200.00 μA
10u
2u
0.2u
0.002A
10.000 V
2.0000 V
200.00 mV
2.0000 mA
20.000 mA
200.00 V
20.000 V
200.00 mA
0.02A
200u
20u
0.2A
SELECTION RANGE
RESOLUTION
RANGE
RESOLUTION
SELECTION
ª
«
0.00
dECPt 0.000 0.00000.000.00
DISPLAY DECIMAL POINT
Select the decimal point location for the Input, MIN and MAX displays. This
selection also affects the dSP1 and dSP2 parameters and setpoint values and offset value.
ª
«
0.00
OFSEt
DISPLAY OFFSET VALUE
The display can be corrected with an offset value. This can be used to
compensate for signal variations or sensor errors. This value is automatically
-19999 to 19999

G
6651-717-767-6511
ª
«
100.00
dSP 2
DISPLAY VALUE FOR SCALING POINT 2
-19999 to 99999
Enter the second Display Value by using the front panel buttons. This is the
same for KEY and APLY scaling styles. The decimal point follows the dECPt
selection.
General Notes on Scaling
1. When using the Apply (APLY) scaling style, input values for scaling points
must be confined to the range limits shown.
2. The same Input Value should not correspond to more than one Display Value.
(Example: 20 mA can not equal 0 and 20.)
3. For input levels beyond the programmed Input Values, the meter extends the
Display Value by calculating the slope from the two coordinate pairs (INP1 /
dSP1 & INP2 / dSP2).
USER INPUT ASSIGNMENT
Select the value(s) to which the User Input Function is assigned. The User
Input Assignment only applies if a selection of reset, display hold, or print and
reset is selected in the User Input Function menu.
MODEDISPLAY
No Function
NO
DESCRIPTION
User Input disabled.
Program Mode Lock-out
P-Loc
Zero Input
(Edge triggered)
ZErO Zero the Input Display value causing
Display Reading to be Offset.
d-SEL
d-LEV
d-HLd
rESEt Resets the assigned value(s) to the current
input value.
HI-LO HI
dSPLO
See Programming Mode Access chart
(Module 3).
Setpoint 1 and 2 Reset
Setpoint 1 Reset
Setpoint 2 Reset
Print and Reset
Reset both setpoint 1 and 2 outputs.
Resets setpoint 1 output.
Resets setpoint 2 output.
Same as Print Request followed by a
momentary reset of the assigned value(s).
rSt12
rSt-1
rSt-2
P-r5t
Print Request
Serial transmit of the active parameters
selected in the Print Options menu
(Module 5).
Print
USER INPUT FUNCTION
ª
«
NO
USrIN
ª
«
dSP
U-ASN
Display Select
(Edge Triggered)
Display Intensity Level
(Edge Triggered)
Display Hold
Reset (Edge triggered)
Advance once for each activation.
Increase intensity one level for each
activation.
Holds the assigned display, but all other
meter functions continue as long as
activated (maintained action).
ª
«
KEy
StYLE
SCALING STYLE
If Input Values and corresponding Display Values are known, the Key-in
(KEY) scaling style can be used. This allows scaling without the presence or
changing of the input signal. If Input Values have to be derived from the actual
input signal source or simulator, the Apply (APLY) scaling style must be used.
KEy APLY
ª
«
0.00
INP 1
INPUT VALUE FOR SCALING POINT 1
For Key-in (KEY) style, enter the first Input Value using the front panel buttons.
(The Input Range selection sets the decimal location for the Input Value).
For Apply (APLY) style, the meter shows the previously stored Input Value. To
retain this value, press the SELSSbutton to advance to the next parameter. To
change the Input Value, press the RSTTTbutton and apply the input signal to the
meter. Adjust the signal source externally until the desired Input Value appears.
Press the SELSSbutton to enter the value being displayed.
0to 29999
ª
«
0.00
dSP 1
DISPLAY VALUE FOR SCALING POINT 1
-19999 to 99999
Enter the first Display Value by using the front panel buttons. This is the same
for KEY and APLY scaling styles. The decimal point follows the dECPt selection.
ª
«
100.00
INP 2
INPUT VALUE FOR SCALING POINT 2
0to 29999
For Key-in (KEY) style, enter the known second Input Value using the front
panel buttons.
For Apply (APLY) style, the meter shows the previously stored Input Value for
Scaling Point 2. To retain this value, press the SELSSbutton to advance to the
next parameter. To change the Input Value, press the RSTTTbutton and apply the
input signal to the meter. Adjust the signal source externally until the desired
Input Value appears. Press the SELSSbutton to enter the value being displayed.
ª
«
LO
U-Act
USER INPUT ACTIVE LEVEL
Select whether the user input is configured as active low or active high.
ª
«
1
FILtr
FILTER SETTING
If the displayed value is difficult to read due to small process variations or
noise, increased levels of filtering will help to stabilize the display. Software
filtering effectively combines a fraction of the current input reading with a
fraction of the previous displayed reading to generate the new display.
Filter values represent no filtering (0), up to heavy filtering (3). A value of 1
for the filter uses 1/4 of the new input and 3/4 of the previous display to generate
the new display. A filter value of 2 uses 1/8 new and 7/8 previous. A filter value
of 3 uses 1/16 new and 15/16 previous.
0,1 2 3
ª
«
10
bANd
FILTER BAND
The filter will adapt to variations in the input signal. When the variation
exceeds the input filter band value, the filter disengages. When the variation
becomes less than the band value, the filter engages again. This allows for a
stable readout, but permits the display to settle rapidly after a large process
change. The value of the band is in display units, independent of the Display
Decimal Point position. A band setting of ‘0’ keeps the filter permanently
engaged at the filter level selected above.
0 to 199 display units
updated after a Zero Display to show how far the display is offset. A value of
zero removes the effects of offset. The decimal point follows the dECPt selection.
LO HI

G
666 www.redlion.net
Entering Code 66 will overwrite all user settings with
the factory settings. The meter will display rESEt and then
return to CodE 00. Press the PAR button to exit the module.
MIN DISPLAY ENABLE
YESNO
ª
«
NO
LO-En
ª
«
NO
FCS
ª
«
2.0
LO-t MIN CAPTURE DELAY TIME
When the Input Display is below the present MIN value for the entered delay
time, the meter will capture that display value as the new MIN reading. A delay
time helps to avoid false captures of sudden short spikes.
0.0 to 999.9 sec.
Select yES to perform either of the Factory Service Operations shown below.
FACTORY SERVICE OPERATIONS
yESNO
Enables the Minimum Display Capture capability.
The LD uses stored calibration values to provide accurate
measurements. Over time, the electrical characteristics of
the components inside the LD will slowly change with the
result that the stored calibration values no longer accurately
define the input circuit. For most applications, recalibration every 1 to 2 years
should be sufficient.
Calibration of the LD involves a calibration which should only be performed
by individuals experienced in calibrating electronic equipment. Allow 30 minute
warm up before performing any calibration related procedure. The following
procedures should be performed at an ambient temperature of 15 to 35 °C (59 to
95 °F).
CAUTION: The accuracy of the calibration equipment will directly affect the
accuracy of the LD.
Current Calibration
1. Connect the negative lead of a precision DC current source with an accuracy
of 0.01% or better to the COMM terminal. Leave the positive lead of the DC
current source unconnected.
2. With the display at CodE 48, press the PAR button. Unit will display CAL NO
3. Press the RST button to select the range to be calibrated.
4. Press the PAR button. Display reads 0.0A
5. With the positive lead of the DC current source unconnected, press PAR.
Display reads CALC for about 8 seconds.
6. When the display reads the selected range, connect the positive lead of the DC
current source to the current input and apply full-scale input signal for the
range. (Note: For 200 mA range, apply 100 mA as indicated on the display.)
Press PAR. Display reads CALC for about 8 seconds.
7. Repeat steps 3 through 6 for each input range to be calibrated. When display
reads CAL NO, press the PAR button to exit calibration.
Voltage Calibration
1. Connect a precision DC voltage source with an accuracy of 0.01% or better
to the volt input and COMM terminals of the LD. Set the output of the voltage
source to zero.
2. With the display at CodE 48, press the PAR button. Unit will display CAL NO.
3. Press the RST button to select the range to be calibrated.
4. Press the PAR button. Display reads 0.0v.
5. With the voltage source set to zero (or a dead short applied to the input), press
PAR. Display reads CALC for about 8 seconds.
6. When the display reads the selected range, apply full-scale input signal for the
range. (Note: For 200V range, apply 100V as indicated on the display.) Press
PAR. Display reads CALC for about 8 seconds.
7. Repeat steps 3 through 6 for each input range to be calibrated. When display
reads CAL NO, press the PAR button to exit calibration
CALIBRATION
ª
«
66
CodE
RESTORE FACTORY DEFAULT SETTINGS
Entering Code 50 will display the model (LDA) and
version (x.x) of the meter. The display then returns to
CodE 00. Press the PAR button to exit the module.
ª
«
50
CodE
VIEW MODEL AND VERSION DISPLAY
ª
«
48
CodE
5.2 MODULE 2 - SECONDARY FUNCTION PARAMETERS (2-SEC)
PARAMETER MENU
ª
«
2.0
HI-t MAX CAPTURE DELAY TIME
When the Input Display is above the present MAX value for the entered
delay time, the meter will capture that display value as the new MAX reading.
A delay time helps to avoid false captures of sudden short spikes.
0.0 to 999.9 sec.
ª
«
NO
HI-En
MAX DISPLAY ENABLE
YESNO
Enables the Maximum Display Capture capability.

G
6671-717-767-6511
5.3 MODULE 3 - DISPLAY AND FRONT PANEL BUTTON
PARAMETERS (3-dSP)
PARAMETER MENU
ª
«
1
dSP-t
DISPLAY UPDATE TIME
This parameter sets the display update time in seconds.
1
0.5 2seconds
The yES selection allows the SEL button to toggle through the enabled
displays.
FRONT PANEL DISPLAY SELECT ENABLE (SEL)
ª
«
yES
SEL
yES NO
This parameter enables the RST button or user input to zero the input display
value, causing the display reading to be offset.
Note: For this parameter to operate, the RST button or User Input being used
must be set to dSP and the Input value must be displayed. If these conditions are
not met, the display will not zero.
ZERO DISPLAY WITH DISPLAY RESET
ª
«
NO
ZErO
yES NO
The yES selection allows the display to automatically scroll through the
enabled displays. The scroll rate is every 4 seconds. This parameter only appears
when the MAX or MIN displays are enabled.
DISPLAY SCROLL ENABLE
ª
«
NO
ScroL
yES NO
The Security Code determines the programming mode and the accessibility
of programming parameters. This code can be used along with the Program
Mode Lock-out (P-Loc) in the User Input Function parameter (Module 1).
Two programming modes are available. Full Programming mode allows all
parameters to be viewed and modified. Quick Programming mode permits only
the Setpoint values to be modified, but allows direct access to these values
without having to enter Full Programming mode.
Programming a Security Code other than 0, requires this code to be entered
at the CodE prompt in order to access Full Programming mode. Depending on the
code value, Quick Programming may be accessible before the CodE prompt
appears (see chart).
PROGRAMMING SECURITY CODE
000 to 999
Enter the desired Display Intensity Level (1-5). The display will actively dim
or brighten as levels are changed.
DISPLAY INTENSITY LEVEL
1 to 5
ª
«
5
d-LEV
ª
«
000
CodE
USER INPUT
FUNCTION
USER INPUT
STATE
SECURITY
CODE
MODE WHEN “SEL”
BUTTON IS PRESSED
FULL PROGRAMMING
MODE ACCESS
0Full Programming Immediate Access
not P-Loc ______ 1-99 Quick Programming
After Quick Programming
with correct code entry at
CodE prompt *
100-999 CodE prompt With correct code entry
at CodE prompt *
0Programming Lock No Access
Active 1-99 Quick Programming No Access
P-Loc
100-999 CodE prompt With correct code entry
at CodE prompt *
Not Active 0-999 Full Programming Immediate Access
This selection allows the RST button to reset the selected value(s).
FRONT PANEL RESET ENABLE (RST)
ª
«
dSP
rSt HI-LO
LO
HI
NO dSP

G
668 www.redlion.net
ª
«
0.0
tON-n
ON TIME DELAY
Enter the time value in seconds that the output is delayed from turning on
after the trigger point is reached. A value of 0.0 allows the meter to update the
output status per the response time listed in the Specifications.
0.0 to 599.9 Sec
ª
«
0.0
tOF-n
OFF TIME DELAY
0.0 to 599.9 Sec
Enter the time value in seconds that the output is delayed from turning off
after the trigger point is reached. A value of 0.0 allows the meter to update the
output status per the response time listed in the Specifications.
Enter the reset action of the output. See figure for details.
Auto = Automatic action; This action allows the output to automatically reset off
at the trigger points per the Setpoint Action shown in Setpoint Output
Figures. The “on” output may be manually reset (off) immediately by the
front panel RST button or user input.The output remains off until the trigger
point is crossed again.
LAtCH = Latch with immediate reset action; This action latches the output on at
the trigger point per the Setpoint Action shown in Setpoint Output Figures.
Latch means that the output can only be turned off by the front panel RST
button or user input manual reset, serial reset command or meter power cycle.
When the user input or RST button is activated (momentary action), the
OUTPUT RESET ACTION
LAtCHAuto L-dLY
ª
«
Auto
rSt-n
Low Acting (Unbalanced Hys) = LO-Ub
High Acting (Unbalanced Hys) = HI-Ub
SETPOINT VALUE
Enter the desired setpoint value. The decimal point position for the setpoint
and hysteresis values follow the selection set in Module 1.
-19999 to 99999
ª
«
100
SPt-n
ª
«
2
HYS-n
HYSTERESIS VALUE
1 to 59999
Enter desired hysteresis value. See Setpoint Output Figures for visual
explanation of how setpoint output actions (balanced and unbalanced) are
affected by the hysteresis. When the setpoint is a control output, usually
balanced hysteresis is used. For alarm applications, usually unbalanced
hysteresis is used. For unbalanced hysteresis modes, the hysteresis functions on
the low side for high acting setpoints and functions on the high side for low
acting setpoints.
Note: Hysteresis eliminates output chatter at the switch point, while time delay
can be used to prevent false triggering during process transient events.
5.4 MODULE 4 - SETPOINT OUTPUT PARAMETERS (4-SPt)
PARAMETER MENU
Enter the setpoint (output) to be programmed. The nin the following
parameters will reflect the chosen setpoint number. After the chosen setpoint
is completely programmed, the display will return to SPSEL. Repeat steps for
each setpoint to be programmed. Select NO to exit the module.
SETPOINT SELECT
ª
«
NO
SPSEL NO SP-1 SP-2
Select YES to enable Setpoint nand access the setup parameters. If NO is
selected, the unit returns to SPSEL and Setpoint nis disabled.
SETPOINT ENABLE
ª
«
NO
Enb-n YES NO
Enter the action for the selected setpoint (output). See Setpoint Output
Figures for a visual detail of each action.
SETPOINT ACTION
ª
«
HI-Ub
Act-n HI-bL LO-bL HI-Ub LO-Ub
High Acting, with balanced hysteresis
Low Acting, with balanced hysteresis
High Acting, with unbalanced hysteresis
Low Acting, with unbalanced hysteresis
=
HI-bL
=
LO-bL
=
HI-Ub
=
LO-Ub
High Acting (Balanced Hys) = HI-bL Low Acting (Balanced Hys) = LO-bL

G
6691-717-767-6511
Setpoint Output Reset Actions
This parameter enables the RST button or user input to reset the output when
the display is reset.
Note: For this parameter to operate, the RST button or User Input being used
must be set to dSP and the Input value must be displayed. If these conditions are
not met, the output will not reset.
ª
«
YES
rEn-n
OUTPUT RESET WITH DISPLAY RESET
YESNO
When YES, the output is disabled (after a power up) until the trigger point is
crossed. Once the output is on, the output operates normally per the Setpoint
Action and Output Reset Action.
ª
«
NO
Stb-n
STANDBY OPERATION
YESNO
5.5 MODULE 5 - SERIAL SETUP PARAMETERS (5-SSEr)
PARAMETER MENU
Module 5 is the programming module for the Serial Communications
Parameters. These parameters are used to match the serial settings of the LD
with those of the host computer or other serial device.
BAUD RATE
Set the baud rate to match that of other serial communications equipment.
Normally, the baud rate is set to the highest value that all of the serial
communications equipment is capable of transmitting and receiving.
ª
«
9600
bAUd 9600
4800
38400
19200
2400600
1200300
corresponding “on” output is reset immediately and remains off until the
trigger point is crossed again. (Previously latched alarms will be off if power
up Display Value is lower than setpoint value.)
L-dLY = Latch with delay reset action; This action latches the output on at the
trigger point per the Setpoint Action shown in Setpoint Output Figures. Latch
means that the output can only be turned off by the front panel RST button
or user input manual reset, serial reset command or meter power cycle. When
the user input or RST button is activated (momentary action), the meter
delays the event until the corresponding “on” output crosses the trigger off
point. (Previously latched outputs are off if power up Display Value is lower
than setpoint value. During a power cycle, the meter erases a previous L-dLY
reset if it is not activated at power up.)
DATA BIT
Select either 7- or 8-bit data word length. Set the word length to match the
other serial communications equipment on the serial link.
ª
«
7-bit
dAtA 8-bit7-bit
PARITY BIT
This parameter only appears when the Data Bit parameter is set to a 7-bit
data word length. Set the parity bit to match that of the other serial equipment
on the serial link. The meter ignores parity when receiving data and sets the
parity bit for outgoing data. If parity is set to NO, an additional stop bit is used
to force the frame size to 10 bits.
ª
«
Odd
PAr EVENOddNO

G
670 www.redlion.net
Sending Serial Commands and Data
When sending commands to the meter, a string containing at least one
command character must be constructed. A command string consists of a
command character, a value identifier, numerical data (if writing data to the
meter) followed by a command terminator character, * or $.
Command Chart
Command String Construction
The command string must be constructed in a specific sequence. The meter
does not respond with an error message to illegal commands. The following
procedure details construction of a command string:
1. The first 2 or 3 characters consist of the Node Address Specifier (N) followed
by a 1 or 2 character node address number. The node address number of the
meter is programmable. If the node address is 0, this command and the node
address itself may be omitted. This is the only command that may be used in
conjunction with other commands.
2. After the optional address specifier, the next character is the command
character.
3. The next character is the register ID. This identifies the register that the
command affects. The P command does not require a register ID character. It
prints all the active selections chosen in the Print Options menu parameter.
4. If constructing a value change command (writing data), the numeric data is
sent next.
5. All command strings must be terminated with the string termination
characters * or $. The meter does not begin processing the command string
until this character is received. See timing diagram figure
Register Identification Chart
Command String Examples:
1. Node address = 17, Write 350 to the Setpoint 1 value
String: N17VD350$
2. Node address = 5, Read Input, response time of 50 msec min
String: N5TA*
3. Node address = 31, Request a Block Print Output, response time of 2 msec min
String: N31P$
Transmitting Data to the Meter
Numeric data sent to the meter must be limited to transmit details listed in the
Register Identification Chart. Leading zeros are ignored. Negative numbers
must have a minus sign. The meter ignores any decimal point and conforms the
number to the scaled resolution. (For example: The meter’s scaled decimal point
position is set for 0.0 and 25 is written to a register. The value of the register is
now 2.5. In this case, write a value of 250 to equal 25.0).
Note: Since the meter does not issue a reply to value change commands, follow
with a transmit value command for readback verification.
ABBREVIATED PRINTING
This parameter determines the formatting of data transmitted from the meter
in response to a Transmit Value command or a Block Print Request. Select NO
for a full print transmission, consisting of the meter address, mnemonics, and
parameter data. Select YES for abbreviated print transmissions, consisting of the
parameter data only. This setting is applied to all the parameters selected in the
PRINT OPTIONS. (Note: If the meter address is 0, the address will not be sent
during a full transmission.)
ª
«
NO
Abbr YESNO
PRINT OPTIONS
This parameter selects the meter values transmitted in response to a Print
Request. A print request is also referred to as a block print because more than
one parameter can be sent to a printer or computer as a block.
Selecting YES displays a sublist for choosing the meter parameters to appear
in the print block. All active parameters entered as YES in the sublist will be
transmitted during a block print. Parameters entered as NO will not be sent.
The “Print All” (P ALL) option selects all meter values for transmitting (YES),
without having to individually select each parameter in the sublist.
Note: Inactive parameters will not be sent regardless of the print option
setting. The Setpoint value will not be sent unless the setpoint is enabled
ª
«
NO
OPt YESNO
DISPLAY DESCRIPTION FACTORY
SETTING MNEMONIC
INP Input YES INP
HI Maximum NO MAX
LO Minimum NO MIN
SPt-1 Setpoint 1 NO SP1
SPt-2 Setpoint 2 NO SP2
METER ADDRESS
Enter the serial node address. With a single unit, an address is not needed
and a value of zero can be used (RS232 applications). Otherwise, with multiple
bussed units, a unique address number must be assigned to each meter. The
node address applies specifically to RS485 applications.
ª
«
00
Addr 0 to 99
Command Description Notes
NNode (meter)
Address Specifier
TTransmit Value (read)
VValue Change (write)
RReset
PBlock Print Request (read)
Address a specific meter. Must be
followed by one or two digit node
address. Not required when node
address = 0.
Read a register from the meter. Must
be followed by a register ID character.
Write to register of the meter. Must be
followed by a register ID character and
numeric data.
Initiates a block print output. Registers
in the print block are selected in Print
Options.
ID Value Description MNEMONIC Applicable
Commands Transmit Details (T and V)
A Input INP T, R 5 digit
BMaximum MAX T, R 5 digit
C Minimum MIN T, R 5 digit
DSetpoint 1 SP1 T, R, V 5 digit positive/4 digit negative
ESetpoint 2 SP2 T, R, V 5 digit positive/4 digit negative
Reset a min or max value or the output.
Must be followed by a register ID
character

G
6711-717-767-6511
Command Response Time
The meter can only receive data or transmit data at any one time (half-duplex
operation). During RS232 transmissions, the meter ignores commands while
transmitting data, but instead uses RXD as a busy signal. When sending
commands and data to the meter, a delay must be imposed before sending
another command. This allows enough time for the meter to process the
command and prepare for the next command.
At the start of the time interval t1, the computer program prints or writes the
string to the com port, thus initiating a transmission. During t1, the command
characters are under transmission and at the end of this period, the command
terminating character (* or $) is received by the meter. The time duration of t1
is dependent on the number of characters and baud rate of the channel.
t1= (10 times the # of characters) / baud rate
At the start of time interval t2, the meter starts the interpretation of the
command and when complete, performs the command function. This time
interval t2varies. If no response from the meter is expected, the meter is ready
to accept another command.
If the meter is to reply with data, the time interval t2is controlled by the use
of the command terminating character. The ‘*’ terminating character results in
a response time of 50 msec. minimum. This allows sufficient time for the
release of the sending driver on the RS485 bus. Terminating the command line
with ‘$’ results in a response time (t2) of 2 msec. minimum. The faster response
time of this terminating character requires that sending drivers release within 2
msec. after the terminating character is received.
At the beginning of time interval t3, the meter responds with the first
character of the reply. As with t1, the time duration of t3is dependent on the
number of characters and baud rate of the channel. At the end of t3, the meter is
ready to receive the next command.
t3= (10 times the # of characters) / baud rate
The maximum serial throughput of the meter is limited to the sum of the
times t1, t2and t3.
Timing Diagram Figure
Receiving Data From The Meter
Data is transmitted from the meter in response to either a transmit command
(T), a block print request command (P) or a User Input print request. The
response from the meter is either a full field transmission or an abbreviated
transmission, depending on the selection chosen in Module 5.
Full Field Transmission
* These characters only appear in the last line of a block print.
The first two characters transmitted are the meter address. If the address
assigned is 0, two spaces are substituted. A space follows the meter address field.
The next three characters are the register mnemonic, as shown in the Register
Identification Chart.
The numeric data is transmitted next. The numeric field (bytes 7 to 15) is 9
characters long. This field consists of a minus sign (for negative values), a
floating decimal point (if applicable), and five positions for the requested value.
The data within bytes 9 to 15 is right-aligned with leading spaces for any
unfilled positions. When a requested value exceeds the meter’s display limits,
decimal points are transmitted instead of a numeric value.
The end of the response string is terminated with a <CR> and <LF>. After the
last line of a block print, an extra <SP>, <CR> and <LF> are added to provide
separation between the print blocks.
Abbreviated Transmission
* These characters only appear in the last line of a block print.
The abbreviated response suppresses the node address and register ID,
leaving only the numeric part of the response.
Meter Response Examples:
1. Node address = 17, full field response, Input = 875
17 INP 875 <CR><LF>
2. Node address = 0, full field response, Setpoint 1 = -250.5
SP1 -250.5<CR><LF>
3. Node address = 0, abbreviated response, Setpoint 2 = 250, last line of block
print 250<CR><LF><SP><CR><LF>
9 byte data field; 7 bytes for number, one byte for sign, one byte for
decimal point
<LF>* (line feed)20
<CR>* (carriage return)19
<SP>* (Space)18
<LF> (line feed)17
<CR> (carriage return)16
7-15
3 byte Register Mnemonic field4-6
<SP> (Space)3
2 byte Node Address field [00-99]1, 2
DescriptionByte
<LF>* (line feed)14
<CR>* (carriage return)13
<SP>* (Space)12
<LF> (line feed)11
<CR> (carriage return)10
9 byte data field, 7 bytes for number, one byte for sign, one
byte for decimal point
1-9
DescriptionByte

G
672 www.redlion.net
Communication Format
Data is transferred from the meter through a serial communication channel.
In serial communications, the voltage is switched between a high and low level
at a predetermined rate (baud rate) using ASCII encoding. The receiving device
reads the voltage levels at the same intervals and then translates the switched
levels back to a character. The voltage level conventions depend on the interface
standard. The table lists the voltage levels for each standard.
Data is transmitted one byte at a time with a variable idle period between
characters (0 to ∞). Each ASCII character is “framed” with a beginning start bit,
an optional parity bit and one or more ending stop bits. The data format and
baud rate must match that of other equipment in order for communication to
take place. The figures list the data formats employed by the meter.
Start Bit and Data Bits
Data transmission always begins with the start bit. The start bit signals the
receiving device to prepare for reception of data. One bit period later, the least
significant bit of the ASCII encoded character is transmitted, followed by the
remaining data bits. The receiving device then reads each bit position as they are
transmitted.
Parity Bit
After the data bits, the parity bit is sent. The transmitter sets the parity bit to
a zero or a one, so that the total number of ones contained in the transmission
(including the parity bit) is either even or odd. This bit is used by the receiver
to detect errors that may occur to an odd number of bits in the transmission.
However, a single parity bit cannot detect errors that may occur to an even
number of bits. Given this limitation, the parity bit is often ignored by the
receiving device. The meter ignores the parity bit of incoming data and sets the
parity bit to odd, even or none (mark parity) for outgoing data.
Stop Bit
The last character transmitted is the stop bit. The stop bit provides a single bit
period pause to allow the receiver to prepare to re-synchronize to the start of a
new transmission (start bit of next byte). The receiver then continuously looks
for the occurrence of the start bit. If 7 data bits and no parity is selected, then 2
stop bits are sent from the meter.
Character Frame Figure
LOGIC RS232* RS485*INTERFACE STATE
1TXD,RXD; -3 to -15 V a-b < -200 mVmark (idle)
0TXD,RXD; +3 to +15 V a-b > +200 mVspace (active)
* Voltage levels at the Receiver

G
6731-717-767-6511
LD PROGRAMMING QUICK OVERVIEW
Press PAR key to enter
Programming Mode.

G
674 www.redlion.net
GENERAL DESCRIPTION
The Large Serial Slave Display is a versatile display that accepts serial ASCII
data from a host device and displays the received characters. The displayable
data includes numeric, 7-segment alphabetic and certain punctuation characters.
The 6-digit displays are available in either 2.25" or 4" high red LED digits
with adjustable display intensity. The 2.25" high models are readable up to 130
feet. The 4" high models are readable up to 180 feet. Both versions are
constructed of a NEMA 4X/IP65 enclosure in light weight aluminum.
The Serial Slave has two internal display buffers, allowing two separate
display values or messages to be viewed. The main (primary) display typically
shows dynamic data (count, rate, process, etc.), usually received directly from
another meter. The secondary display typically shows a fixed message or value,
such as a system or machine identifier, or a target production value. The main
and secondary displays can be toggled either manually or automatically at a user
selected toggle speed. Both displays are retained in memory when power is
removed from the unit.
For single meter remote display applications, the Serial Slave can be
connected directly to a Red Lion (or compatible) meter with RS232 or RS485
serial communications. The slave can display the meter value on its main display
without requiring a PC or other serial interface.
Multiple slaves are connected using an RS485 serial bus. If unique meter
addresses are assigned, specific data can be displayed by a single slave on the
bus. When multiple slaves are assigned the same address, common data can be
displayed by multiple units in different locations.
Serial communications parameters are fully programmable, with baud rates
up to 38.4Kbps. Special command characters allow display selection and
display intensity adjustment through the serial input. In addition to the serial
input, a programmable User Input is provided to perform a variety of meter
functions.
SAFETY SUMMARY
All safety regulations, local codes and instructions that appear in this and
corresponding literature, or on equipment, must be observed to ensure personal
safety and to prevent damage to either the instrument or equipment connected to
it. If equipment is used in a manner not specified by the manufacturer, the
protection provided by the equipment may be impaired.
SPECIFICATIONS
1. DISPLAY: 6-digit 2.25" (57 mm) or 4" (101 mm) adjustable intensity Red LED
2. POWER REQUIREMENTS:
AC POWER: 50 to 250 VAC 50/60 Hz, 26 VA
DC POWER: 21.6 to 250 VDC, 11 W
Isolation: 2300 VRMS for 1 min. to all inputs and outputs
3. SERIAL INPUT:
RS485 SERIAL COMMUNICATIONS
Type: Multi-point balanced interface (isolated)
Baud Rate: 300 to 38400
Data Format: 7/8 bits; odd, even, or no parity
Bus Address: 0 to 99; max 32 meters per line
RS232 SERIAL COMMUNICATIONS
Type: Half duplex (isolated)
Baud Rate: 300 to 38400
Data Format: 7/8 bits; odd, even, or no parity
4. USER INPUT (Programmable Function Input):
Active low logic, internal 7.8 KΩpull-up resistor to +12V.
Trigger levels: VIL = 1.0 V max; VIH = 2.4 V min; VMAX = 28 VDC
Response time: 10 msec typ; 50 msec debounce (activation & release)
5. MEMORY: Nonvolatile E2PROM retains all programming parameters, main
and secondary displays when power is removed.
z2.25" or 4" HIGH RED LED DIGITS
zDISPLAYS UP TO 6 DIGITS OF SERIAL ASCII DATA
zDUAL DISPLAY BUFFER ALLOWS ALTERNATING DISPLAYS
zRS232 OR RS485 SERIAL INTERFACE
zCONNECTS DIRECTLY TO RED LION PRODUCTS WITH SERIAL
zPROGRAMMABLE USER INPUT
zUNIVERSALLY POWERED
zALUMINUM NEMA 4X/IP65 CASE CONSTRUCTION
MODEL LD - LARGE SERIAL SLAVE DISPLAY
DIMENSIONS In inches (mm)
X (Length)
LD2SS6P0 16 (406.4)
LD4SS6P0 26 (660.4) 7.875 (200)
CAUTION: Risk of Danger.
Read complete instructions prior to
installation and operation of the unit.
CAUTION: Risk of electric shock.
12 (304.8)4 (101.6)
PART
NUMBER Z (Center)Y (Height)
22 (558.8)
The protective conductor terminal is bonded to conductive
parts of the equipment for safety purposes and must be
connected to an external protective earthing system.

G
6751-717-767-6511
6. CERTIFICATIONS AND COMPLIANCES:
SAFETY
IEC 61010-1, EN 61010-1: Safety requirements for electrical equipment for
measurement, control, and laboratory use, Part 1.
IP65 Enclosure rating (Face only), IEC 529
Type 4X Enclosure rating (Face only), UL50
ELECTROMAGNETIC COMPATIBILITY
Emissions and Immunity to EN 61326: Electrical Equipment for
Measurement, Control and Laboratory use.
Notes:
1. Criterion A: Normal operation within specified limits.
2. Criterion B: Temporary loss of performance from which the unit self-
recovers.
7. CONNECTIONS:
Internal removable terminal blocks used for power and signal wiring.
Remove end plates with ¼" nut driver.
For LD2 versions power is on the right side and serial wiring is on the left
side. For LD4 versions, all wiring is on the right side of the unit.
Wire Strip Length: 0.4" (10 mm)
Wire Gage: 24-12 AWG copper wire
Torque: 5.3 inch-lbs (0.6 N-m) max
8. ENVIRONMENTAL CONDITIONS:
Operating temperature: 0 to 50 °C
Storage temperature: -40 to 70 °C
Operating and storage humidity: 0 to 85% max. RH (non-condensing)
Vibration According to IEC 68-2-6: Operational 5 to 150 Hz, in X, Y, Z
direction for 1.5 hours, 2 g’s (1g relay).
Shock According to IEC 68-2-27: Operational 30 g’s (10g relay), 11 msec in
3 directions.
Altitude: Up to 2,000 meters
9. CONSTRUCTION: Aluminum enclosure, and steel side panels with
textured black polyurethane paint for scratch and corrosion resistance
protection. Sealed front panel meets NEMA 4X/IP65 specifications.
Installation Category II, Pollution Degree 2.
10. WEIGHT:
LD2SS6P0 - 4.5 lbs (2.04 kg)
LD4SS6P0 - 10.5 lbs (4.76 kg)
2.0 WIRING THE METER
EMC INSTALLATION GUIDELINES
Although this meter is designed with a high degree of immunity to Electro-
Magnetic Interference (EMI), proper installation and wiring methods must be
followed to ensure compatibility in each application. The type of the electrical
noise, source or coupling method into the meter may be different for various
installations. The meter becomes more immune to EMI with fewer I/O
connections. Cable length, routing, and shield termination are very important
and can mean the difference between a successful or troublesome installation.
Listed below are some EMC guidelines for successful installation in an
industrial environment.
1. The meter should be properly connected to protective earth.
2. Use shielded (screened) cables for all Signal and Control inputs. The shield
(screen) pigtail connection should be made as short as possible. The
connection point for the shield depends somewhat upon the application.
Listed below are the recommended methods of connecting the shield, in order
of their effectiveness.
a. Connect the shield only at the panel where the unit is mounted to earth
ground (protective earth).
b. Connect the shield to earth ground at both ends of the cable, usually when
the noise source frequency is above 1 MHz.
c. Connect the shield to common of the meter and leave the other end of the
shield unconnected and insulated from earth ground.
Class A
Class B
EN 55011
EN 55011
Emissions LD2006P0
Emissions LD200400
Emissions:
0.5 cycle
Criterion A
3 V/rms
Voltage dip/interruptions
Criterion AEN 61000-4-6RF conducted interference
1 kV L-L,
Criterion AEN 61000-4-5Surge
1 kV signal
2 kV power
Criterion AEN 61000-4-4Fast transients (burst)
2 kV L&N-E power
10 V/m
Criterion B LD2006P0
Criterion A LD200400EN 61000-4-3Electromagnetic RF fields
8 kV air discharge
4 kV contact discharge
Criterion AEN 61000-4-2Electrostatic discharge
Immunity to Industrial Locations:
ORDERING INFORMATION
LD
MODEL NO. DESCRIPTION PART NUMBER
LD2SS6P0
LD4SS6P0
2.25" High 6-Digit Red LED Serial Slave Display,
RS232/RS485 Serial Communications
4" High 6-Digit Red LED Serial Slave Display,
RS232/RS485 Serial Communications
1.0 INSTALLING THE METER
INSTALLATION
The meter meets NEMA 4X/IP65 requirements when properly installed.
INSTALLATION ENVIRONMENT
The unit should be installed in a location that does not exceed the operating
temperature. Placing the unit near devices that generate excessive heat should
be avoided. The unit should only be cleaned with a soft cloth and neutral soap
product. Do NOT use solvents.
Continuous exposure to direct sunlight may accelerate the aging process of
the front overlay. Do not use tools of any kind (screwdrivers, pens, pencils, etc.)
to operate the keypad of the unit.
MOUNTING INSTRUCTIONS
This display is designed to
be wall mounted or
suspended from a ceiling
truss or other suitable
structure capable of
supporting the LDSS.
Caution should be
exercised when hanging
the display to provide for
the safety of personnel. If
hanging the LDSS, run the
suspension cables (or chains)
through the mounting bracket
holes. For wall mounting use #10-
32 size bolts.

G
676 www.redlion.net
LD4SS6P0 Right Side
LD2SS6P0 Right Side
LD2SS6P0 Left Side
The power wiring is made via the 3 position terminal block (TBA) located inside unit (right side).
2.1 POWER WIRING
AC Power
Terminal 1: VAC/DC +
Terminal 2: VAC/DC -
Terminal 3: Earth Ground
3. Never run Signal or Control cables in the same conduit or raceway with AC
power lines, conductors feeding motors, solenoids, SCR controls, and
heaters, etc. The cables should be ran in metal conduit that is properly
grounded. This is especially useful in applications where cable runs are long
and portable two-way radios are used in close proximity or if the installation
is near a commercial radio transmitter.
4. Signal or Control cables within an enclosure should be routed as far as possible
from contactors, control relays, transformers, and other noisy components.
5. In extremely high EMI environments, the use of external EMI suppression
devices, such as ferrite suppression cores, is effective. Install them on Signal
and Control cables as close to the unit as possible. Loop the cable through the
core several times or use multiple cores on each cable for additional protection.
Install line filters on the power input cable to the unit to suppress power line
interference. Install them near the power entry point of the enclosure. The
following EMI suppression devices (or equivalent) are recommended:
Ferrite Suppression Cores for signal and control cables:
Fair-Rite # 0443167251 (RLC# FCOR0000)
TDK # ZCAT3035-1330A
Steward # 28B2029-0A0
Line Filters for input power cables:
Schaffner # FN610-1/07 (RLC# LFIL0000)
Schaffner # FN670-1.8/07
Corcom # 1 VR3
Note: Reference manufacturer's instructions when installing a line filter.
6. Long cable runs are more susceptible to EMI pickup than short cable runs.
Therefore, keep cable runs as short as possible.
7. Switching of inductive loads produces high EMI. Use of snubbers across
inductive loads suppresses EMI.
Snubber: RLC# SNUB0000.
WIRING OVERVIEW
Electrical connections are made via pluggable terminal blocks located inside
the meter. All conductors should conform to the meter's voltage and current
ratings. All cabling should conform to appropriate standards of good
installation, local codes and regulations. It is recommended that the power
supplied to the meter (DC or AC) be protected by a fuse or circuit breaker.
When wiring the meter, compare the numbers on the label on the back of the
meter case against those shown in wiring drawings for proper wire position.
Strip the wire, leaving approximately 0.4" (10 mm) bare lead exposed (stranded
wires should be tinned with solder.) Insert the lead under the correct screw
clamp terminal and tighten until the wire is secure. (Pull wire to verify
tightness.) Each terminal can accept up to one #14 AWG (2.55 mm) wire, two
#18 AWG (1.02 mm), or four #20 AWG (0.61 mm).
2.2 USER INPUT WIRING
The User Input is wired to Terminals 1 and 2 of TBB as shown.
Terminal 5: User Input
Terminal 6: Common
Sinking Logic

G
6771-717-767-6511
3.0 REVIEWING THE FRONT PANEL KEYS AND DISPLAY
KEY DISPLAY MODE OPERATION PROGRAMMING MODE OPERATION
PAR Access Programming Mode Store selected parameter and index to next parameter
RSTTT
SELSSSelect display (main or secondary)
Increment selected digit of parameter value
DISPLAY DESIGNATOR
“ 2 ” - To the far right of the display indicates the secondary display is shown.
If display scroll is enabled, the display will toggle automatically between the main and secondary display at the selected scroll interval.
Reset display(s) per front panel reset
setting
Advance through selection list/select digit position in
parameter value
communications to take place. This is known as a null modem connection. Most
printers emulate a DCE device while most computers emulate a DTE device.
Some devices cannot accept more than two or three characters in succession
without a pause in between. In these cases, the meter employs a busy function.
As the meter begins to transmit data, the RXD line (RS232) is monitored to
determine if the receiving device is “busy”. The receiving device asserts that it
is busy by setting the RXD line to a space condition (logic 0). The meter then
suspends transmission until the RXD line is released by the receiving device.
RS485 Communications
The RS485 communication standard allows the connection of up to 32
devices on a single pair of wires, distances up to 4,000 ft. and data rates as high
as 10M baud (the LDSS is limited to 38.4k baud). The same pair of wires is used
to both transmit and receive data. RS485 is therefore always half-duplex, that is,
data cannot be received and transmitted simultaneously.
RS232 Communications
RS232 is intended to allow two devices to communicate over distances up to
50 feet. Data Terminal Equipment (DTE) transmits data on the Transmitted Data
(TXD) line and receives data on the Received Data (RXD) line. Data Computer
Equipment (DCE) receives data on the TXD line and transmits data on the RXD
line. The LD emulates a DTE. If the other device connected to the meter also
emulates a DTE, the TXD and RXD lines must be interchanged for
2.3 SERIAL WIRING
Terminal Block Connection Figure
Terminal Block Connection Figure
The serial connections are made via terminal block TBD located inside the
unit on the left side for the LD2 and on the right side for the LD4.

G
678 www.redlion.net
PROGRAMMING MODE ENTRY (PAR KEY)
It is recommended all programming changes be made off line, or before
installation. The meter normally operates in the Display Mode. No parameters
can be programmed in this mode. The Programming Mode is entered by
pressing the PAR key. If it is not accessible, then it is locked by either a security
code or a hardware lock (See Module 2).
MODULE ENTRY (SELS& PAR KEYS)
The Programming Menu is organized into two modules. These modules group
together parameters that are related in function. The display will alternate between
and the present module. The SELSSkey is used to select the desired module.
The displayed module is entered by pressing the PAR key.
MODULE MENU (PAR KEY)
Each module has a separate module menu (which is shown at the start of each
module discussion). The PAR key is pressed to advance to a particular parameter
to be changed, without changing the programming of preceding parameters.
After completing a module, the display will return to . Programming
may continue by accessing additional modules.
SELECTION / VALUE ENTRY
For each parameter, the display alternates between the present parameter and
the selections/value for that parameter. The SELSSand RSTTTkeys are used to
move through the selections/values for that parameter. Pressing the PAR key,
stores and activates the displayed selection/value. This also advances the meter
to the next parameter.
For numeric values, the value is displayed with one digit flashing (initially the
right most digit). Pressing the RSTTTkey increments the digit by one or the user
can hold the RSTTTkey and the digit will automatically scroll. The SELSSkey
will select the next digit to the left. Pressing the PAR key will enter the value and
move to the next parameter.
PROGRAMMING MODE EXIT (PAR KEY)
The Programming Mode is exited by pressing the PAR key with
displayed. This will commit any stored parameter changes to memory and return
the meter to the Display Mode. (If power loss occurs before returning to the
Display Mode, verify recent parameter changes.)
PROGRAMMING TIPS
It is recommended to start with Module 1 and proceed through each module in
sequence. When programming is complete, it is recommended to record the
parameter programming and lock out parameter programming with the user input
or programming security code.
FACTORY SETTINGS
Factory Settings may be completely restored in Module 2. This is useful when
encountering programming problems or in the event of corrupted program data.
ALTERNATING SELECTION DISPLAY
In the explanation of the modules, the following dual display with arrows will
appear. This is used to illustrate the display alternating between the parameter
on top and the parameter’s Factory Setting on the bottom. In most cases,
selections and values for the parameter will be listed on the right.
4.0 PROGRAMMING THE METER
PROGRAMMING MENU
Indicates Program Mode Alternating Display
Factory Settings are shown.
ª
«
Parameter
Selection/Value
4.1 MODULE 1 - INPUT SETUP PARAMETERS ()
PARAMETER MENU
Module 1 is the programming module for the Input Setup Parameters. This
includes the Serial Input setup parameters and the User Input function. Set the
Serial Input parameters to match the settings of the host device.
BAUD RATE
Set the baud rate to match that of the host device. Normally, the baud rate is
set to the highest value that all the serial communications equipment is capable
of transmitting and receiving.
ª
«
DATA BIT
Select either 7- or 8-bit data word length to match that of the host device.
ª
«

G
6791-717-767-6511
USER INPUT FUNCTIONPARITY BIT
METER ADDRESS
This parameter only appears when the Data Bit parameter is set to 7-bit. Set
the parity bit to match that of the host device. If parity is set to , an additional
stop bit is used to force the frame size to 10 bits.
Enter the meter (node) address. With a single slave unit, an address is not
required and a value of zero should be used. This is the case with an RS232
connection, where only one Serial Slave is connected to the host.
With multiple Serial Slaves connected on an RS485 bus, a unique address
number must be assigned to each unit in order to send data to a specific slave
on the bus. If multiple slaves are assigned the same address (including zero),
common data can be sent to, and displayed by multiple slave units on the bus.
ª
«
ª
«
ª
«
to
USER INPUT ASSIGNMENT
Select the display to which the User Input Function applies. The User Input
Assignment only appears if the secondary display is enabled and a selection of
reset or display hold is chosen for the User Input Function.
Assignment choices include the main (primary) and/or secondary display,
or the display which is shown at the moment the User Input is activated ().
Note: For reset selection, main display resets to zero. Secondary display
resets to all blanks.
ª
«
DATA RECEIVE DELAY TIME
Upon receiving a terminator character <CR>, the Serial Slave disables serial
data reception for the time duration entered in this parameter. Using a delay
allows the Serial Slave to ignore additional characters such as a <LF> or second
<CR>, which often follow a serial data string. This value is entered in seconds
and hundredths of seconds format, with a 10 msec minimum delay time.
(See "Data Receive Delay Timing" in the Communications section for
additional timing details.)
ª
«
to
User Input disabled.
See Programming Mode
Access chart (Module 2).
Momentary reset of the assigned
display(s).
Level active reset of the
assigned display(s).
Freeze the assigned display(s)
as long as the input is active.
Increase intensity one level for
each activation.
Toggle between main and
secondary display (if enabled).
DISPLAY DESCRIPTION
No Function
Program Mode Lock-out
Momentary Reset
(Edge triggered)
Maintained Reset
Display Hold
Display Intensity Level
(Edge triggered)
Display Select
(Edge triggered)
MODE
Select to allow the SELSkey to toggle between the main and secondary
displays. This parameter only appears if the secondary display is enabled.
FRONT PANEL DISPLAY SELECT ENABLE (SELS)
4.2 MODULE 2 - DISPLAY AND FRONT PANEL KEY
PARAMETERS ()
PARAMETER MENU
This parameter allows the RSTTTkey to reset the main (primary) and/or
secondary display (if enabled), or the display which is currently shown ().
Select to disable the RSTTTkey.
Note: Main display resets to zero. Secondary display resets to all blanks.
FRONT PANEL DISPLAY RESET ENABLE (RSTT)
Select the time interval at which the display automatically toggles between
the main and secondary displays. Select to disable automatic scrolling. This
parameter only appears if the secondary display is enabled.
DISPLAY SCROLL INTERVAL
ª
«
ª
«
ª
«
Select to enable the secondary display. A “2” on the far right of the display
always appears when the secondary display is shown.
SECONDARY DISPLAY ENABLE
ª
«

G
680 www.redlion.net
This parameter allows the Main and/or Secondary display (if enabled) to
automatically reset when power is applied to the unit.
DISPLAY RESET AT POWER-UP
The Security Code determines the user access to Programming mode. This
code can be used independently or along with the Program Mode Lock-out
() selection in the User Input Function parameter (Module 1).
Programming a Security Code other than 0, requires this code to be entered
at the prompt in order to access Programming mode.
PROGRAMMING SECURITY CODE
The selection returns the slave to the factory default settings. The unit will
displays and returns to , with the factory settings loaded.
LOAD FACTORY DEFAULT SETTINGS
to
Enter the desired display intensity level. The display will actively brighten or
dim as the level is changed.
DISPLAY INTENSITY LEVEL
ª
«
ª
«
ª
«
ª
«
USER INPUT
FUNCTION
USER INPUT
STATE
SECURITY
CODE
PROGRAMMING ACCESS
WHEN “PAR” PRESSED
0Immediate Access
not
______
1-999
0Programming Locked
No Access
Active
1-999 With correct code entry
at prompt *
Not Active 0-999 Immediate Access
With correct code entry
at prompt *
* Entering Code 222 allows access regardless of security code.
to
Select to insert blanks in place of any leading zeros received in a serial
data string. This is typical when sending numeric values to the slave. Select
to enable display of any leading zeros in the string. This parameter setting only
applies to the Main display.
LEADING ZERO DISPLAY ENABLE
ª
«
Serial Slave Communications
Displayable Characters
The ASCII characters that the Serial Slave can display are as follows:
Numeric: 0 to 9
Alphabetic (7-segment): A, b, C, c, d, E, e, F, G, g, H, h, I , i, J, K, L, l, N, n,
O, o, P, q, r, S, t, U, u, V, v, Y, Z
Non-displayable alphabetic characters will be replaced with a blank if
received. These include M, W and X.
Note: Both uppercase and lowercase ASCII characters are accepted. If a
displayable difference exists, characters will be shown in the case received.
Punctuation: period, comma, and colon (all displayed as decimal point);
minus (dash), blank
Display and Serial Buffer Capacity
The Serial Slave display is right aligned and has the capacity of displaying six
characters. When less than six characters are received, blank spaces are placed
in front of the characters. If more than six characters are received, only the last
six are displayed.
The unit has two internal display buffers, allowing two separate values or
messages to be viewed. The main display is always enabled and viewable. The
secondary display may be enabled or disabled through programming. When
enabled, this display is indicated by a “2” on the far right of the display. The
main and secondary displays can be toggled either manually or automatically at
a user selectable toggle speed. A serial command can also be sent to select which
display is shown. Both displays are retained in memory when power is removed
from the unit.
The Serial Slave has an internal 64 character buffer for received data. If more
than 64 characters are sent, the additional characters are discarded until a string
terminator <CR> is received. At that point, the last six characters at the end of
the buffer are displayed.
A carriage return <CR> is the only valid string terminator for the Serial Slave.
However, if an <*> or <$> is received, the slave will empty and reset its internal
character buffer without processing the string. These characters are used as valid
command terminators for serial commands sent to other Red Lion meters. Since
these commands are not applicable to the Serial Slave, the slave discards the
command and prepares its character buffer for a new data string.
Data and Command String Formatting
Data sent to the Serial Slave must be formatted as either main display data,
secondary display data or command strings sent to perform specific display
functions. The format for sending data is shown below:
N xx I d6 d5 d4 d3 d2 d1 <CR>
N- Required to address a specific slave unit in a multiple unit loop.
xx - Two-digit meter address. Single digit address requires leading zero.
I- Format identifier character (see below). Omit for main display data.
d6-d1 - The last 6 characters before the <CR> will be shown, if displayable.
<CR> - Carriage Return (0DH) used as string terminator character.
The format identifier character <I>dictates how the Serial Slave interprets a
data string as follows:
(omit) - No character indicates main display data
# - Indicates secondary display data
@ - Display select command, followed by display identifier character
main <1> or secondary <2> (ex: @1<CR> select main display)
% - Display intensity command, followed by intensity level character
<1> to <5> (ex: %3<CR> set display intensity level to 3)
Downloading Data from a G3 to an LDSS
Communications:
Port: RS232 Comms Raw Serial Port
Port Driver: <system> Raw Serial Port
Programming:
PortPrint(2, "N01" + IntToText(Var1, 10, 6) + "\r");
This program is called from the Global On Tick. It sends "N01" (the address
of the LDSS), followed by the ASCII equivalent of Var1, then a carriage return.

G
6811-717-767-6511
Data Receive Delay Timing
Upon receiving a string terminator character <CR>, the Serial Slave requires
a delay time to process the received data and prepare for the next string. During
this delay, the meter disables serial data reception.
The Data Receive Delay Time is programmable in Module 1, with a
minimum delay of 10 mSec. By extending this delay, the Serial Slave can ignore
data sent by the host which is not intended for display. This data includes
additional characters such as a <LF> or redundant <CR>, which might follow a
serial data string. This could also include additional data strings sent as part of
a data block, where only the first string is intended for the Serial Slave display.
In this case, the delay time should be programmed to exceed the total
transmission time for the entire data block. This results in the Serial Slave
displaying the first string of the data block and disabling data reception during
transmission of the additional strings.
The Receive Delay Time must be set to expire at a point where no data is
being sent to the Serial Slave. This prevents the unit from enabling data
reception in the middle of a character or data string, which could result in an
incorrect display when the string is processed.
Timing Diagram for Data Reception
LD SERIAL SLAVE PROGRAMMING QUICK OVERVIEW

G
682 www.redlion.net
zLARGE LED DISPLAY READABLE TO 70 FEET
zVARIOUS ANALOG INPUT MODULES;
DC VOLTAGE AND CURRENT
PROCESS SIGNALS
TRUE RMS VOLTAGE AND CURRENT
THERMOCOUPLE OR RTD
STRAIN GAGE/BRIDGE
zALARMS, ANALOG OUTPUT, AND COMMUNICATION
zCUSTOM UNITS LABEL WITH BACKLIGHT
zPROGRAMMABLE USER INPUTS
zPROGRAMMABLE FUNCTION KEYS
zUNIVERSAL AC/DC POWERED MODELS
zCRIMSON PROGRAMMING SOFTWARE
zNEMA 4/IP65
GENERAL DESCRIPTION
The LPAX Display is a versatile display that can increase productivity by
offering the plant floor or production area a large visual display of their current
status. Whether your measurement is temperature, weight, or flow, the LPAX
can satisfy your requirement. With the use of a units label and backlighting, the
display can be tailored to show the actual engineering unit, which further
enhances the display. This LPAX display accepts various analog inputs through
the use of input modules (MPAX) which allow the unit to adapt to most any
application. The MPAX Modules offer the same features as our highly
successful PAX Series Panel Meters. Additional plug-in option cards can add
alarms, analog output, and communication/bus capabilities, making the LPAX a
truly Intelligent Panel Meter.
SAFETY SUMMARY
All safety regulations, local codes and instructions that appear in this and
corresponding literature, or on equipment, must be observed to ensure personal
safety and to prevent damage to either the instrument or equipment connected
to it. If equipment is used in a manner not specified by the manufacturer, the
protection provided by the equipment may be impaired.
The protective conductor terminal is bonded to conductive
parts of the equipment for safety purposes and must be
connected to an external protective earthing system.
SPECIFICATIONS
Additional specifications, wiring, programming, and information for the
individual MPAX models are contained in the corresponding standard PAX
literature. This PAX literature is shipped with the ordered MPAX model.
1. DISPLAY: 1.5" (38 mm) Red LED
5-Digit: (-19999 to 99999)
2. POWER REQUIREMENTS:
AC Modules: 85 to 250 VAC, 50/60 Hz, 18 VA
DC Modules: 11 to 36 VDC or 24 VAC ±10%, 50/60 Hz, 14 W
3. INPUT: Accepts analog input modules, see “Selecting your display
components.”
4. ANNUNCIATORS:
LPAX0500: MAX, MIN, TOT, SP1, SP2, SP3, and SP4
Optional units label with backlight
5. KEYPAD: Five tactile membrane switches integrated into the front panel
6. CERTIFICATIONS AND COMPLIANCES:
UL Recognized Component, File #E179259, UL61010A-1, CSA 22.2 No. 1010-1
Recognized to US and Canadian requirements under the Component
Recognition Program of Underwriters Laboratories, Inc.
UL Listed, File # E137808, UL508, CSA C22.2 No. 14-M95
LISTED by Und. Lab. Inc. to U.S. and Canadian safety standards
Type 4 Enclosure rating (Face only), UL50
IECEE CB Scheme Test Certificate #US/8843/UL
CB Scheme Test Report #04ME11209-20041018
Issued by Underwriters Laboratories, Inc.
IEC 61010-1, EN 61010-1: Safety requirements for electrical equipment
for measurement, control, and laboratory use, Part 1.
IP65 Enclosure rating (Face only), IEC 529
ELECTROMAGNETIC COMPATIBILITY
EMC specifications determined by the MPAX module.
MODEL LPAX- 5 DIGIT LARGE PAX DISPLAY FOR ANALOG INPUTS
DIMENSIONS In inches (mm)
CAUTION: Risk of Danger.
Read complete instructions prior to
installation and operation of the unit.
CAUTION: Risk of electric shock.
PANEL CUT-OUT
C
C
US LISTED
US LISTED
UL
R
IND. CONT. EQ.
51EB

G
6831-717-767-6511
WARNING: Disconnect all power to the unit before
installing Plug-in cards.
Adding Option Cards
The MPAX series meters can be fitted with up to three optional plug-in cards.
However, only one card from each function type can be installed at a time. The
function types include Setpoint Alarms (PAXCDS), Communications
(PAXCDC), and Analog Output (PAXCDL). The cards can be installed initially
or at a later date. Each optional plug-in card is shipped with installation and
programming instructions.
COMMUNICATION CARDS (PAXCDC)
A variety of communication protocols are available for the PAX and MPAX
series. Only one of these cards can be installed at a time. When programming
the unit via Crimson, a Windows®based program, the RS232 or RS485 Cards
must be used.
*Units available in various connector configurations.
SETPOINT CARDS (PAXCDS)
The MPAX series has four setpoint alarm output plug-in cards. Only one of
these cards can be installed at a time. (Logic state of the outputs can be reversed
in the programming.) These plug-in cards include:
PAXCDS10 - Dual Relay, FORM-C, Normally open & closed
PAXCDS20 - Quad Relay, FORM-A, Normally open only
PAXCDS30 - Isolated quad sinking NPN open collector
PAXCDS40 - Isolated quad sourcing PNP open collector
LINEAR DC OUTPUT (PAXCDL)
Either a 0(4)-20 mA or 0-10 V retransmitted linear DC output is available
from the analog output plug-in card. The programmable output low and high
scaling can be based on the input, max, min, or total display value. Reverse
slope output is possible by reversing the scaling point positions.
PAXCDL10 - Retransmitted Analog Output Card
UNITS LABEL (LX)
The LPAX Display has an area on the front panel designed for a custom units
label. The units label is applied directly to the panel in the embossed area. The
units backlight is then turned on via programming.
Available on 5-digit version only. Refer to the LPAX Accessories Bulletin for
a list of available units labels.
PROGRAMMING SOFTWARE (CRIMSON)
Crimson is a Windows®based program that allows configuration of the
LPAX meter from a PC. Crimson offers standard drop-down menu commands,
that make it easy to program the LPAX meter. The LPAX program can then be
saved in a PC file for future use. A PAX serial plug-in card is required to
program the meter using the software.
MPAX MODULES *
SIGNAL TYPE INPUT RANGES
85-250 VAC 11 to 36 VDC/ 24 VAC
LPAX DISPLAYS
Universal DC Inputs MPAXD000 MPAXD010 LPAX0500
Process Inputs 0-20 mA or 0-10 VDC MPAXP000 MPAXP010 LPAX0500
Temperature Inputs
Thermocouples-T, E, J, K, R, S, B, N, C, or Custom Scaling
RTD’s-100 ohm Pt (platinum) 385/392, 120 ohm Nickel 672, or
10 ohm Copper 427
MPAXT000 MPAXT010 LPAX0500
Strain Gage/ Load Cell 24 mV or 240 mV MPAXS000 MPAXS010 LPAX0500
True RMS AC
Voltage/Current MPAXH000 N/A LPAX0500
AC Voltage 200 mV, 2 V, 20 V, 300 V
AC Current 200 uA, 2 mA, 20 mA, 200 mA, 5 Amp
DC Voltage 200 mV, 2 V, 20 V, 300 V
DC Current 200 µA, 2 mA, 20 mA, 200 mA, 2 Amp
Resistance 100 ohm, 1000 ohm, 10 K ohm
7. ENVIRONMENTAL CONDITIONS:
Operating Temperature Range: Determined by the MPAX module
Storage Temperature Range: -40 to 60°C
Operating and Storage Humidity: 0 to 85% max. RH (non-condensing)
Altitude: Up to 2000 meters
8. MOUNTING REQUIREMENTS:
Max. panel thickness is 0.375" (9.5 mm)
Min. panel thickness for NEMA 4/IP65 sealing is 0.060" (1.57 mm)
9. MODULE INSTALLATION:
24-pin shrouded connector on LPAX engages connector on MPAX module
upon installation. Shroud ensures proper alignment by providing a lead-in for
the module connector.
10. CONNECTIONS: All wiring connections are made to the MPAX module
via high compression cage-clamp terminal blocks. Wiring instructions are
provided with the MPAX module.
CAUTION: DISCONNECT ALL POWER BEFORE
INSTALLING OR REMOVING MODULE
11. CONSTRUCTION: Steel front panel, enclosure, and rear cover with
textured black polyurethane paint for scratch and corrosion resistance
protection. Sealed front panel meets NEMA 4/IP65 specifications for indoor
use when properly installed. Installation Category II, Pollution Degree 2.
Panel gasket and keps nuts included.
12. WEIGHT: 2.7 lbs (1.2 kg) (less module)
*For detailed Module specifications, see corresponding PAX literature. (i.e. For MPAXD specifications, see the PAXD literature)
OPTIONAL PLUG-IN CARDS AND ACCESSORIES
About the MPAX Input Modules
The MPAX Module serves as the input to the LPAX Display. There are several different modules to cover a variety of inputs. The MPAX module provides input
scaling which allows the LPAX to display most any engineering unit. Once the MPAX is inserted into the LPAX, the unit has the same functions and capabilities of
our PAX Series Intelligent Panel Meters. A full set of PAX programming instructions will be included with the MPAX Module.
Note: The MPAX provides the operating power for the LPAX, therefore you must select either the AC or DC MPAX corresponding with your application and available
power.
Selecting Your Display Components
To build a complete display unit, you will need an LPAX and an MPAX Input Module. The LPAX is only a display and will not operate without an MPAX Module.
Please use the following chart to identify the appropriate MPAX Module (including supply power) and LPAX Display that will satisfy your application.
PAXCDC30 - DeviceNet
PAXCDC50 - Profibus-DPPAXCDC2* - RS232 Serial
PAXCDC4* - ModbusPAXCDC1* - RS485 Serial

G
684 www.redlion.net
CAUTION: The MPAX main circuit board and the option cards
contain static sensitive components. Before handling the module
or the cards, discharge static charges from your body by
touching a grounded bare metal object. Handle the module by
the rear plastic cover only, and the option cards by the board
edges. Dirt, oil or other contaminants that contact the circuit
boards or components can adversely affect circuit operation.
WARNING: Exposed line voltage exists on the MPAX main circuit
board and the option cards. DO NOT apply power to the
module OR load circuits until the module is properly installed
in the LPAX case.
NOTE: All module and option card labels must be installed as
shown for safety purposes.
Removing The MPAX Module
To remove the MPAX Module from the LPAX Display, first
remove all power and load circuits. Then insert a flat
screwdriver blade (3/16" or 1/4") into the narrow slot
between the LPAX rear cover plate and the
module’s plastic cover as illustrated in Figure
2. Twist the screwdriver in the direction
shown to disengage the internal
connectors while firmly
squeezing and pulling back
on the rear finger tabs
(top and bottom).
Carefully slide the
module out of the
LPAX case, keeping it
properly aligned with
the case opening.
1.0 ASSEMBLING THE DISPLAY
Prior to installing the LPAX Display, it is recommended that the MPAX
and any option cards be assembled first. This will allow you the
opportunity to insure all the boards are fitted properly into their
connectors.
Installing the Option Cards
If your application requires option
cards, they should be installed into the
MPAX before it is installed into the
LPAX Display. Refer to the
literature enclosed with the option
cards for installation instruction.
Installing the MPAX
To install the MPAX Module,
align the module with the opening
in the LPAX case, as illustrated.
The module must be oriented as
shown, with terminal #1 toward the
top of the LPAX case. Carefully
slide the module into the LPAX case.
The LPAX and MPAX connectors will begin
to engage about ¼" from the bottom. At this point,
apply a small amount of pressure to the rear of the
MPAX module to fully engage the connection. Be sure the
module fully snaps into the slots at the rear of the LPAX case. The
display is ready for installation.
Installing the Labels
Each option card and the MPAX are shipped with a connection label. These
labels must be applied to the rear of the LPAX in the positions shown in the
drawing.
Figure 1, Installing an MPAX Module and Option Cards
Figure 2, Removing an MPAX Module

G
6851-717-767-6511
Once assembled, the LPAX and MPAX have all the same functions and
capabilities of our PAX Series Intelligent Panel Meters. Therefore, you will find
the appropriate PAX information packed with the MPAX Module. Simply
follow the instructions to wire and program the display for your application.
TROUBLESHOOTING
For technical assistance, contact technical support.
2.0 INSTALLING THE DISPLAY
3.0 WIRING AND PROGRAMMING THE DISPLAY
LPAX DISPLAY INSTALLATION
The LPAX display is intended to be mounted into a panel or
enclosure. The display is provided with a gasket to provide a
water-tight seal. The recommended minimum panel thickness
for NEMA 4/IP65 sealing is 0.060" (1.57 mm).
For panel mounting, prepare the panel cut-out to the
dimensions shown. The supplied template may be used to
mark the cut-out and hole locations on the panel. After
the panel cut-out has been deburred, slide the panel
gasket over the rear of the display and onto the
mounting studs. Insert the display into the panel
cut-out as illustrated in Figure 3. Install six # 10-32
keps nuts (supplied) and tighten evenly for uniform
gasket compression. Do not over-tighten the nuts.
By using additional mounting accessories, the
LPAX can be surface-wall mounted, suspended, or
bottom mounted. Separate installation instructions
are provided with the mounting accessories.
Environment And Cleaning
The display should be installed in a location that
does not exceed the maximum operating temperature
and provides good air circulation. Placing the system
near devices that generate excessive heat should be
avoided.
The bezel should be cleaned only with a soft cloth
and neutral soap product. Do NOT use solvents.
Continuous exposure to direct sunlight may accelerate
the aging process of the bezel.
Figure 3, Installing The LPAX Into A Panel
SFCRD200Crimson 2 PC Configuration Software for Windows 98, ME, 2000 and XP
SFCRD**
Accessories
Listed SeparatelyCustom Units LabelLX*
PAXCDC50
PAXCDC4C
PAXCDC40
PAXCDC30
Profibus-DP Communications Card
Extended Modbus Communications Card with Dual RJ11 Connector
Modbus Communications Card
DeviceNet Communications Card
Optional
Plug-In
Cards
MBLPAX00
SHRLPAX0
PAXCDL10Analog Output Card
PAXCDL
Mounting Bracket for LPAX
Shroud for LPAX
PAXCDC2C
PAXCDC20
Extended RS232 Serial Communications Output Card with 9 Pin D Connector
RS232 Serial Communications Output Card with Terminal Block
MB
SHR
PAXCDC1C
PAXCDC10
Extended RS485 Serial Communications Output Card with Dual RJ11 Connector
RS485 Serial Communications Output Card with Terminal Block
PAXCDC
ENC90000
PAXCDS40Quad Setpoint Sourcing Open Collector Output Card
NEMA 4 Enclosure for LPAX
ENC9
PAXCDS30Quad Setpoint Sinking Open Collector Output Card
Analog
Input
Module
Display
PAXCDS20Quad Setpoint Relay Output Card
TYPE
MPAXT010
MPAXS010
MPAXP010
MPAXD010
PAXCDS10Dual Setpoint Relay Output Card
PAXCDS
Thermocouple and RTD Module, DC/24 VAC Powered
Strain Gage Input Module, DC/24 VAC Powered
Process Input Module, DC/24 VAC Powered
Universal DC Input Module, DC/24 VAC Powered
MPAXT000
MPAXS000
MPAXP000
MPAXH000
MPAXD000
LPAX0500
Thermocouple and RTD Module, AC Powered
Strain Gage Input Module, AC Powered
Process Input Module, AC Powered
AC True RMS Voltage and Current Module, AC Powered
Universal DC Input Module, AC Powered
5-Digit, Large Display for Analog MPAX Modules
MPAX
LPAX
PART NUMBERSDESCRIPTIONMODEL NO.
ORDERING INFORMATION
* See the LPAX Accessory Bulletin or our web site for available units labels.
** Crimson software is available for download from http://www.redlion.net/

G
686 www.redlion.net
zLARGE LED DISPLAY READABLE TO 70 FEET
zVARIOUS DIGITAL INPUT MODULES;
COUNT AND RATE INPUT
CLOCK/TIMER
SERIAL SLAVE
zALARMS, ANALOG OUTPUT, AND COMMUNICATION
zPROGRAMMABLE USER INPUTS
zPROGRAMMABLE FUNCTION KEYS
zUNIVERSAL AC/DC POWERED MODELS
zPC SOFTWARE FOR METER CONFIGURATION
zNEMA 4/IP65
GENERAL DESCRIPTION
The LPAX Display is a versatile display that can increase productivity by
offering the plant floor or production area a large visual display of their current
status. Whether your measurement is rate, count, or time, the LPAX can satisfy
your requirement. These LPAX displays accept various digital inputs through
the use of input modules (MPAX) which allow the unit to adapt to most any
application. The MPAX Modules offer the same features as our highly
successful PAX Series Panel Meters. Additional plug-in option cards can add
alarms, analog output, and communication/bus capabilities, making the LPAX a
truly Intelligent Panel Meter.
SAFETY SUMMARY
All safety regulations, local codes and instructions that appear in this and
corresponding literature, or on equipment, must be observed to ensure personal
safety and to prevent damage to either the instrument or equipment connected
to it. If equipment is used in a manner not specified by the manufacturer, the
protection provided by the equipment may be impaired.
The protective conductor terminal is bonded to conductive
parts of the equipment for safety purposes and must be
connected to an external protective earthing system.
SPECIFICATIONS
Additional specifications, wiring, programming, and information for the
individual MPAX models are contained in the corresponding standard PAX
literature. This PAX literature is shipped with the ordered MPAX model.
1. DISPLAY: 1.5" (38 mm) Red LED
6-Digit (LPAX0600): (-99999 to 999999)
6-Digit (LPAXCK00): (0 to 999999)
2. POWER REQUIREMENTS:
AC Modules: 85 to 250 VAC, 50/60 Hz, 18 VA
DC Modules: 11 to 36 VDC or 24 VAC ±10%, 50/60 Hz, 14 W
3. INPUT: Accepts digital input modules, see “Selecting Your Display
Components and Option Cards.”
4. ANNUNCIATORS:
LPAX0600: A, B, C, SP1, SP2, SP3, and SP4
LPAXCK00: TMR, CNT, DAT, SP1, SP2, SP3, and SP4
5. KEYPAD: Five tactile membrane switches integrated into the front panel
6. CERTIFICATIONS AND COMPLIANCES:
SAFETY
UL Recognized Component, File #E179259, UL61010A-1, CSA 22.2 No. 1010-1
Recognized to US and Canadian requirements under the Component
Recognition Program of Underwriters Laboratories, Inc.
UL Listed, File # E137808, UL508, CSA C22.2 No. 14-M95
LISTED by Und. Lab. Inc. to U.S and Canadian safety standards
Type 4 Enclosure rating (Face Only), UL50
IECEE CB Scheme Test Certificate # US/8843/UL
CB Scheme Test Report # 04ME11209-20041018
Issued by Underwriters Laboratories, Inc.
IEC 61010-1, EN 61010-1: Safety requirements for electrical
equipment for measurement, control, and laboratory use, Part 1.
IP65 Enclosure rating (Face only), IEC 529
ELECTROMAGNETIC COMPATIBILITY
EMC specifications determined by the MPAX module.
MODEL LPAX- 6 DIGIT LARGE PAX DISPLAY FOR DIGITAL INPUTS
DIMENSIONS In inches (mm)
CAUTION: Risk of Danger.
Read complete instructions prior to
installation and operation of the unit.
CAUTION: Risk of electric shock.
PANEL CUT-OUT
C
C
US LISTED
US LISTED
UL
R
IND. CONT. EQ.
51EB

G
6871-717-767-6511
MPAX MODULES*
SIGNAL TYPE
85-250 VAC 11 to 36 VDC / 24 VAC REAL-TIME
CLOCK
ANALOGCOMMS
OPTIONAL PLUG-IN CARD COMPATABILITY
SETPOINT
LPAX
DISPLAYS
Count/Rate/Serial Slave MPAXI000 MPAXI010 -YESYESYESLPAX0600
Count MPAXC000 MPAXC010 ---YESLPAX0600
Rate MPAXR000 MPAXR010 ---YESLPAX0600
Timer
Clock/Timer
MPAXTM00
MPAXCK00
MPAXTM10
MPAXCK10
-
YES
-
-
YES
YES
YES
YES
7. ENVIRONMENTAL CONDITIONS:
Operating Temperature Range: Determined by the MPAX module
Storage Temperature Range: -40 to 60°C
Operating and Storage Humidity: 0 to 85% max. RH (non-condensing)
Altitude: Up to 2000 meters
8. MOUNTING REQUIREMENTS:
Max. panel thickness is 0.375" (9.5 mm)
Min. panel thickness for NEMA 4/IP65 sealing is 0.060" (1.57 mm)
9. MODULE INSTALLATION:
24-pin shrouded connector on LPAX engages connector on MPAX module
upon installation. Shroud ensures proper alignment by providing a lead-in for
the module connector.
10. CONNECTIONS: All wiring connections are made to the MPAX module
via high compression cage-clamp terminal blocks. Wiring instructions are
provided with the MPAX module.
CAUTION: DISCONNECT ALL POWER BEFORE
INSTALLING OR REMOVING MODULE
11. CONSTRUCTION: Steel front panel, enclosure, and rear cover with
textured black polyurethane paint for scratch and corrosion resistance
protection. Sealed front panel meets NEMA 4/IP65 specifications for indoor
use when properly installed. Installation Category II, Pollution Degree 2.
Panel gasket and keps nuts included.
12. WEIGHT: 2.7 lbs (1.2 kg) (less module)
*For detailed module and plug-in card specifications, see corresponding PAX literature. (i.e. For MPAXI specifications, see the PAXI literature)
OPTIONAL PLUG-IN CARDS AND ACCESSORIES
About the MPAX Input Modules
The MPAX Module serves as the input to the LPAX Display. There are several different modules to cover a variety of inputs. The MPAX module provides input
scaling which allows the LPAX to display most any engineering unit. Once the MPAX is inserted into the LPAX, the unit has the same functions and capabilities of
our PAX Series Intelligent Panel Meters. A full set of PAX programming instructions will be included with the MPAX module.
Note: The MPAX provides the operating power for the LPAX, therefore you must select either the AC or DC MPAX corresponding with your application and available
power.
Selecting Your Display Components and Option Cards
To build a complete display unit, you will need an LPAX and an MPAX Input Module. The LPAX is only a display and will not operate without an MPAX module.
Please use the following chart to identify the appropriate MPAX module (including supply power) and LPAX Display that will satisfy your application.
**The LPAXCK will only operate with the Clock/Timer MPAX input module.
LPAXCK00**
LPAXCK00**
WARNING: Disconnect all power to the unit before
installing Plug-in cards.
Adding Option Cards
The MPAX series meters can be fitted with up to three optional plug-in cards.
However, only one card from each function type can be installed at a time. The
function types include Setpoint Alarms (PAXCDS), Communications
(PAXCDC), and Analog Output (PAXCDL). The cards can be installed initially
or at a later date. Each optional plug-in card is shipped with installation and
programming instructions.
COMMUNICATION CARDS (PAXCDC)
A variety of communication protocols are available for the PAX and MPAX
series. Only one of these cards can be installed at a time. When programming
the unit via Crimson (for MPAXI) or SFPAX (for MPAXCK or MPAXTM), the
RS232 or RS485 Cards must be used.
SETPOINT CARDS (PAXCDS)
The MPAX series has four setpoint alarm output plug-in cards. Only one of
these cards can be installed at a time. (Logic state of the outputs can be reversed
in the programming.) These plug-in cards include:
Dual relay, FORM-C, Normally open & closed
Quad relay, FORM-A, Normally open only
Isolated quad sinking NPN open collector
Isolated quad sourcing PNP open collector
LINEAR DC OUTPUT (PAXCDL)
Either a 0(4)-20 mA or 0-10 V retransmitted linear DC output is available
from the analog output plug-in card. The programmable output low and high
scaling can be based on the input, max, min, or total display value. Reverse
slope output is possible by reversing the scaling point positions.
PAXCDL10 - Retransmitted Analog Output Card
PROGRAMMING SOFTWARE
CRIMSON - MPAXI Only
Crimson is a Windows®based program that allows configuration of the
LPAX meter from a PC. Crimson offers standard drop-down menu commands,
that make it easy to program the LPAX meter. The LPAX program can then be
saved in a PC file for future use. A PAX serial plug-in card is required to
program the meter using the software.
SFPAX - MPAXCK and MPAXTM Only
The SFPAX is a Windows®based program that allows configuration of the
LPAX meter from a PC. Using the SFPAX makes it easier to program the LPAX
meter and allows saving the PAX program in a PC file for future use. On-line
help is available within the software. A PAX serial plug-in card is required to
program the meter using the software.
PAXCDC50 - Profibus-DPPAXCDC2C - RS232 Serial (Connector)
PAXCDC40 - Modbus (Terminal)PAXCDC1C - RS485 Serial (Connector)
PAXCDC4C - Modbus (Connector)PAXCDC20 - RS232 Serial (Terminal)
PAXCDC30 - DeviceNetPAXCDC10 - RS485 Serial (Terminal)

G
688 www.redlion.net
CAUTION: The MPAX main circuit board and the option cards
contain static sensitive components. Before handling the module
or the cards, discharge static charges from your body by
touching a grounded bare metal object. Handle the module by
the rear plastic cover only, and the option cards by the board
edges. Dirt, oil or other contaminants that contact the circuit
boards or components can adversely affect circuit operation.
WARNING: Exposed line voltage exists on the MPAX main circuit
board and the option cards. DO NOT apply power to the
module OR load circuits until the module is properly installed
in the LPAX case.
NOTE: All module and option card labels must be installed as
shown for safety purposes.
Removing The MPAX Module
To remove the MPAX Module from the LPAX Display, first
remove all power and load circuits. Then insert a flat
screwdriver blade (3/16" or 1/4") into the narrow slot
between the LPAX rear cover plate and the
module’s plastic cover as illustrated in
Figure 2. Twist the screwdriver in the
direction shown to disengage the
internal connectors while
firmly squeezing and
pulling back on the
rear finger tabs (top
and bottom).
Carefully slide the
module out of the
LPAX case, keeping it
properly aligned with
the case opening.
1.0 ASSEMBLING THE DISPLAY
Prior to installing the LPAX Display, it is recommended that the MPAX
and any option cards be assembled first. This will allow you the
opportunity to insure all the boards are fitted properly into their
connectors.
Installing the Option Cards
If your application requires option
cards, they should be installed into the
MPAX before it is installed into the
LPAX Display. Refer to the
literature enclosed with the option
cards for installation instruction.
Installing the MPAX
To install the MPAX Module,
align the module with the opening
in the LPAX case, as illustrated.
The module must be oriented as
shown, with terminal #1 toward the
top of the LPAX case. Carefully
slide the module into the LPAX case.
The LPAX and MPAX connectors will begin
to engage about ¼" from the bottom. At this point,
apply a small amount of pressure to the rear of the
MPAX module to fully engage the connection. Be sure the
module fully snaps into the slots at the rear of the LPAX case. The
display is ready for installation.
Installing the Labels
Each option card and the MPAX are shipped with a connection label. These
labels must be applied to the rear of the LPAX in the positions shown in the
drawing.
Figure 1, Installing an MPAX Module and Option Cards
Figure 2, Removing an MPAX Module

G
6891-717-767-6511
Once assembled, the LPAX and MPAX have all the same functions and
capabilities of our PAX Series Intelligent Panel Meters. Therefore, you will find
the appropriate PAX information packed with the MPAX Module. Simply
follow the instructions to wire and program the display for your application.
TROUBLESHOOTING
For technical assistance, contact technical support.
2.0 INSTALLING THE DISPLAY
3.0 WIRING AND PROGRAMMING THE DISPLAY
LPAX DISPLAY INSTALLATION
The LPAX display is intended to be mounted into a panel or
enclosure. The display is provided with a gasket to provide a water-
tight seal. The recommended minimum panel thickness for
NEMA 4/IP65 sealing is 0.060" (1.57 mm).
For panel mounting, prepare the panel cut-out to the
dimensions shown. The supplied template may be used to
mark the cut-out and hole locations on the panel. After
the panel cut-out has been deburred, slide the panel
gasket over the rear of the display and onto the
mounting studs. Insert the display into the panel cut-
out as illustrated in Figure 3. Install six # 10-32 keps
nuts (supplied) and tighten evenly for uniform
gasket compression. Do not over-tighten the nuts.
By using additional mounting accessories, the
LPAX can be surface-wall mounted, suspended, or
bottom mounted. Separate installation instructions are
provided with the mounting accessories.
Environment And Cleaning
The display should be installed in a location that does
not exceed the maximum operating temperature and
provides good air circulation. Placing the system near
devices that generate excessive heat should be avoided.
The bezel should be cleaned only with a soft cloth and
neutral soap product. Do NOT use solvents. Continuous
exposure to direct sunlight may accelerate the aging process of the bezel. Figure 3, Installing The LPAX Into A Panel
ORDERING INFORMATION
*Refer to “Selecting Your Display Components and Option Cards.”
**Available as a FREE download from the Red Lion website. www.redlion.net
MODEL NO. DESCRIPTION PART NUMBERS
Optional
Plug-In
Cards
LPAX 6-Digit Display for Digital MPAX Modules LPAX0600
6-Digit Display for MPAXCK (Clock/Timer) and MPAXTM Only
PAXCDS
Dual Setpoint Relay Output Card PAXCDS10
LPAXCK00
TYPE
Quad Setpoint Relay Output Card PAXCDS20
Display
Quad Setpoint Sinking Open Collector Output Card PAXCDS30
ENC9 NEMA 4 Enclosure for LPAX
Quad Setpoint Sourcing Open Collector Output Card PAXCDS40
ENC90000
PAXCDC*
RS485 Serial Communications Output Card with Terminal Block PAXCDC10
MB
SHR
Extended RS485 Serial Communications Output Card with Dual RJ11 Connector PAXCDC1C
Shroud for LPAX
Modbus Communications Card PAXCDC40
SHRLPAX0
Extended RS232 Serial Communications Output Card with 9 Pin D Connector PAXCDC2C
Mounting Bracket for LPAX
Extended Modbus Communications Card with Dual RJ11 Connector
MBLPAX00
PAXCDC4C
Accessories
Count Indicator Module, AC Powered MPAXC000
SFPAX** PC Configuration Software for Windows 95/98 on 3.5"disk (for MPAXCK and MPAXTM) SFPAX
Count Indicator Module, DC/24 VAC Powered MPAXC010
Timer Module, AC Powered
Rate Indicator Module, AC Powered MPAXR000
Rate Indicator Module, DC/24 VAC Powered MPAXR010
RS232 Serial Communications Output Card with Terminal Block PAXCDC20
Clock/Timer Module, AC Powered MPAXCK00
MPAXTM00
PAXCDL*
DeviceNet Communications Card PAXCDC30
Clock/Timer Module, DC/24 VAC Powered MPAXCK10
Digital
Input
Module
Timer Module, DC/24 VAC Powered MPAXTM10
MPAX
Analog Output Card PAXCDL10
PAXRTC*Real Time Clock Card for MPAXCK (Clock/Timer) Only PAXRTC00
Count/Rate Indicator Module, AC Powered MPAXI000
Count/Rate Indicator Module, DC/24 VAC Powered MPAXI010
Profibus-DP Communications Card PAXCDC50
SFCRD** Crimson 2 PC Configuration Software for Windows 98, ME, 2000 and XP (for MPAXI) SFCRD200

G
690 www.redlion.net
OLARGE LED DISPLAY READABLE TO 70 FEET
ODUAL PROCESS SIGNAL INPUT MODULE
OALARMS, ANALOG OUTPUT, AND COMMUNICATION
OCUSTOM UNITS LABEL WITH BACKLIGHT
OPROGRAMMABLE USER INPUTS
OPROGRAMMABLE FUNCTION KEYS
OUNIVERSAL AC/DC POWERED MODELS
OCRIMSON SOFTWARE FOR METER CONFIGURATION
ONEMA 4/IP65
GENERAL DESCRIPTION
The LPAXDA Display is a versatile display that can increase productivity by
offering the plant floor or production area a large visual display of their current
status. With the use of a units label and backlighting, the display can be tailored
to show the actual engineering unit, which further enhances the display. This
LPAXDA display accepts various analog inputs through the use of input
modules (MPAXDP) which allow the unit to adapt to most any application. The
MPAXDP Modules offer the same features as our highly successful PAXDP
Series Panel Meters. Additional plug-in option cards can add alarms, analog
output, and communication/bus capabilities, making the LPAXDA a truly
Intelligent Panel Meter.
SAFETY SUMMARY
All safety regulations, local codes and instructions that appear in this and
corresponding literature, or on equipment, must be observed to ensure personal
safety and to prevent damage to either the instrument or equipment connected
to it. If equipment is used in a manner not specified by the manufacturer, the
protection provided by the equipment may be impaired.
The protective conductor terminal is bonded to conductive
parts of the equipment for safety purposes and must be
connected to an external protective earthing system.
SPECIFICATIONS
Additional specifications, wiring, programming, and information for the
individual MPAX models are contained in the corresponding standard PAX
literature. This PAX literature is shipped with the ordered MPAX model.
1. DISPLAY: 1.5" (38 mm) Red LED
5-Digit: (-19999 to 99999)
2. POWER REQUIREMENTS:
AC Modules: 85 to 250 VAC, 50/60 Hz, 21 VA
DC Modules: 18 to 36 VDC, 13 W or 24 VAC ±10%, 50/60 Hz, 16 VA
3. INPUT: Accepts analog input modules, see “Selecting your display
components.”
4. ANNUNCIATORS:
LPAXDA00: A, B, C, SP1, SP2, SP3, and SP4
Optional units label with backlight
5. KEYPAD: Five tactile membrane switches integrated into the front panel
6. CERTIFICATIONS AND COMPLIANCES:
UL Recognized Component, File #E179259, UL3101-1, CSA 22.2 No. 1010-1
Recognized to US and Canadian requirements under the Component
Recognition Program of Underwriters Laboratories, Inc.
UL Listed, File # E137808, UL508, CSA C22.2 No. 14-M95
LISTED by Und. Lab. Inc. to U.S. and Canadian safety standards
Type 4 Enclosure rating (Face only), UL50
IECEE CB Scheme Test Certificate #UL/8843/UL
CB Scheme Test Report #04ME11209-20041018
Issued by Underwriters Laboratories, Inc.
IEC 1010-1, EN 61010-1: Safety requirements for electrical equipment for
measurement, control, and laboratory use, Part 1.
IP65 Enclosure rating (Face only), IEC 529
ELECTROMAGNETIC COMPATIBILITY
EMC specifications determined by the MPAX module.
MODEL LPAXDA- 5 DIGIT LARGE PAX DISPLAY FOR DUAL ANALOG INPUTS
DIMENSIONS In inches (mm)
CAUTION: Read complete
instructions prior to installation
and operation of the unit.
CAUTION: Risk of electric shock.
PANEL CUT-OUT
C
C
US LISTED
US LISTED
UL
R
IND. CONT. EQ.
51EB

G
6911-717-767-6511
WARNING: Disconnect all power to the unit before
installing Plug-in cards.
Adding Option Cards
The MPAX series meters can be fitted with up to three optional plug-in cards.
However, only one card from each function type can be installed at a time. The
function types include Setpoint Alarms (PAXCDS), Communications
(PAXCDC), and Analog Output (PAXCDL). The cards can be installed initially
or at a later date. Each optional plug-in card is shipped with installation and
programming instructions.
COMMUNICATION CARDS (PAXCDC)
A variety of communication protocols are available for the PAX and MPAX
series. Only one of these cards can be installed at a time. When programming
the unit via Crimson, a Windows®based program, the RS232 or RS485 Cards
must be used.
*Units available in various connector configurations.
SETPOINT CARDS (PAXCDS)
The MPAX series has four setpoint alarm output plug-in cards. Only one of
these cards can be installed at a time. (Logic state of the outputs can be reversed
in the programming.) These plug-in cards include:
PAXCDS10 - Dual Relay, FORM-C, Normally open & closed
PAXCDS20 - Quad Relay, FORM-A, Normally open only
PAXCDS30 - Isolated quad sinking NPN open collector
PAXCDS40 - Isolated quad sourcing PNP open collector
LINEAR DC OUTPUT (PAXCDL)
Either a 0(4)-20 mA or 0-10 V retransmitted linear DC output is available
from the analog output plug-in card. The programmable output low and high
scaling can be based on the input, max, min, or total display value. Reverse
slope output is possible by reversing the scaling point positions.
PAXCDL10 - Retransmitted Analog Output Card
UNITS LABEL (LX)
The LPAX Display has an area on the front panel designed for a custom units
label. The units label is applied directly to the panel in the embossed area. The
units backlight is then turned on via programming.
Refer to the LPAX Accessories Bulletin for a list of available units labels.
PROGRAMMING SOFTWARE
Crimson 2 (SFCRD2) is a Windows®based program for configuring and
updating the firmware of the MPAXDP meter from a PC. Using Crimson 2
makes programming the MPAXDP meter easier and allows the user to save the
MPAXDP database in a PC file for future use. Crimson is available as a free
download from Red Lion’s website, or it can be purchased on CD.
The first time Crimson 2 is run from the File menu, select “New” to display
a dialog and select the MPAXDP. The screen will display icons that represent
the various programming sections of the MPAXDP. Double-click on an icon to
configure the programming parameters pertaining to the selection. Tool Tip help
is available for each of the program parameters. A PAX serial plug-in card is
required to program the meter using the software.
MPAX MODULES *
SIGNAL TYPE INPUT RANGES
85-250 VAC 11 to 36 VDC/ 24 VAC
LPAX DISPLAY
Dual Process Inputs 0-20 mA or 0-10 VDC MPAXDP00 MPAXDP10 LPAXDA00
7. ENVIRONMENTAL CONDITIONS:
Operating Temperature Range: Determined by the MPAX module
Storage Temperature Range: -40 to 60°C
Operating and Storage Humidity: 0 to 85% max. RH (non-condensing)
Altitude: Up to 2000 meters
8. MOUNTING REQUIREMENTS:
Max. panel thickness is 0.375" (9.5 mm)
Min. panel thickness for NEMA 4/IP65 sealing is 0.060" (1.57 mm)
9. MODULE INSTALLATION:
24-pin shrouded connector on LPAX engages connector on MPAX module
upon installation. Shroud ensures proper alignment by providing a lead-in for
the module connector.
10. CONNECTIONS: All wiring connections are made to the MPAX module
via high compression cage-clamp terminal blocks. Wiring instructions are
provided with the MPAX module.
CAUTION: DISCONNECT ALL POWER BEFORE
INSTALLING OR REMOVING MODULE
11. CONSTRUCTION: Steel front panel, enclosure, and rear cover with
textured black polyurethane paint for scratch and corrosion resistance
protection. Sealed front panel meets NEMA 4/IP65 specifications for indoor
use when properly installed. Installation Category II, Pollution Degree 2.
Panel gasket and keps nuts included.
12. WEIGHT: 2.7 lbs (1.2 kg) (less module)
*For detailed Module specifications, see corresponding PAX literature. (i.e. For MPAXDP specifications, see the PAXDP literature)
OPTIONAL PLUG-IN CARDS AND ACCESSORIES
About the MPAX Input Modules
The MPAX Module serves as the input to the LPAX Display. The MPAX module provides input scaling which allows the LPAX to display most any engineering
unit. Once the MPAX is inserted into the LPAX, the unit has the same functions and capabilities of our PAX Series Intelligent Panel Meters. A full set of PAX
programming instructions will be included with the MPAX Module.
Note: The MPAX provides the operating power for the LPAX, therefore you must select either the AC or DC MPAX corresponding with your application and available
power.
Selecting Your Display Components
To build a complete display unit, you will need an LPAXDP and an MPAXDP Input Module. The LPAX is only a display and will not operate without an MPAX
Module. Please use the following chart to identify the appropriate MPAX Module (including supply power) and LPAX Display that will satisfy your application.
PAXCDC30 - DeviceNet
PAXCDC50 - Profibus-DPPAXCDC2* - RS232 Serial
PAXCDC4* - ModbusPAXCDC1* - RS485 Serial

G
692 www.redlion.net
CAUTION: The MPAX main circuit board and the option cards
contain static sensitive components. Before handling the module
or the cards, discharge static charges from your body by
touching a grounded bare metal object. Handle the module by
the rear plastic cover only, and the option cards by the board
edges. Dirt, oil or other contaminants that contact the circuit
boards or components can adversely affect circuit operation.
WARNING: Exposed line voltage exists on the MPAX main circuit
board and the option cards. DO NOT apply power to the
module OR load circuits until the module is properly installed
in the LPAX case.
NOTE: All module and option card labels must be installed as
shown for safety purposes.
Removing The MPAX Module
To remove the MPAX Module from the LPAX Display, first
remove all power and load circuits. Then insert a flat
screwdriver blade (3/16" or 1/4") into the narrow slot
between the LPAX rear cover plate and the
module’s plastic cover as illustrated in Figure
2. Twist the screwdriver in the direction
shown to disengage the internal
connectors while firmly
squeezing and pulling back
on the rear finger tabs
(top and bottom).
Carefully slide the
module out of the
LPAX case, keeping it
properly aligned with
the case opening.
1.0 ASSEMBLING THE DISPLAY
Prior to installing the LPAX Display, it is recommended that the MPAX
and any option cards be assembled first. This will allow you the
opportunity to insure all the boards are fitted properly into their
connectors.
Installing the Option Cards
If your application requires option
cards, they should be installed into the
MPAX before it is installed into the
LPAX Display. Refer to the
literature enclosed with the option
cards for installation instruction.
Installing the MPAX
To install the MPAX Module,
align the module with the opening
in the LPAX case, as illustrated.
The module must be oriented as
shown, with terminal #1 toward the
top of the LPAX case. Carefully
slide the module into the LPAX case.
The LPAX and MPAX connectors will begin
to engage about ¼" from the bottom. At this point,
apply a small amount of pressure to the rear of the
MPAX module to fully engage the connection. Be sure the
module fully snaps into the slots at the rear of the LPAX case. The
display is ready for installation.
Installing the Labels
Each option card and the MPAX are shipped with a connection label. These
labels must be applied to the rear of the LPAX in the positions shown in the
drawing.
Figure 1, Installing an MPAX Module and Option Cards
Figure 2, Removing an MPAX Module

G
6931-717-767-6511
Once assembled, the LPAX and MPAX have all the same functions and
capabilities of our PAX Series Intelligent Panel Meters. Therefore, you will find
the appropriate PAX information packed with the MPAX Module. Simply
follow the instructions to wire and program the display for your application.
TROUBLESHOOTING
For technical assistance, contact technical support.
2.0 INSTALLING THE DISPLAY
3.0 WIRING AND PROGRAMMING THE DISPLAY
LPAX DISPLAY INSTALLATION
The LPAX display is intended to be mounted into a panel or
enclosure. The display is provided with a gasket to provide a
water-tight seal. The recommended minimum panel thickness
for NEMA 4/IP65 sealing is 0.060" (1.57 mm).
For panel mounting, prepare the panel cut-out to the
dimensions shown. The supplied template may be used to
mark the cut-out and hole locations on the panel. After
the panel cut-out has been deburred, slide the panel
gasket over the rear of the display and onto the
mounting studs. Insert the display into the panel
cut-out as illustrated in Figure 3. Install six # 10-32
keps nuts (supplied) and tighten evenly for uniform
gasket compression. Do not over-tighten the nuts.
By using additional mounting accessories, the
LPAX can be surface-wall mounted, suspended, or
bottom mounted. Separate installation instructions
are provided with the mounting accessories.
Environment And Cleaning
The display should be installed in a location that
does not exceed the maximum operating temperature
and provides good air circulation. Placing the system
near devices that generate excessive heat should be
avoided.
The bezel should be cleaned only with a soft cloth
and neutral soap product. Do NOT use solvents.
Continuous exposure to direct sunlight may accelerate
the aging process of the bezel.
Figure 3, Installing The LPAX Into A Panel
ORDERING INFORMATION
* See the LPAX Accessory Bulletin or our web site for available units labels.
MODEL NO. DESCRIPTION PART NUMBERS
LPAXDA 5-Digit, Large Display for Analog MPAXDP Modules LPAXDA00
Optional
Plug-In
Cards
PAXCDC
PAXCDS
Extended RS485 Serial Communications Output Card with Dual RJ11 Connector
Dual Setpoint Relay Output Card
PAXCDC1C
PAXCDS10
TYPE
RS232 Serial Communications Output Card with Terminal Block
Quad Setpoint Relay Output Card
PAXCDC20
PAXCDS20
MPAXDP
Display
Extended Modbus Communications Card with Dual RJ11 Connector
Extended RS232 Serial Communications Output Card with 9 Pin D Connector
Quad Setpoint Sinking Open Collector Output Card
PAXCDC4C
PAXCDC2C
PAXCDS30
ENC9 NEMA 4 Enclosure for LPAX
Profibus-DP Communications Card
DeviceNet Communications Card
Quad Setpoint Sourcing Open Collector Output Card
PAXCDC50
PAXCDC30
PAXCDS40
ENC90000
MB
SHR Shroud for LPAX
PAXCDL Analog Output Card
Modbus Communications Card
RS485 Serial Communications Output Card with Terminal Block
PAXCDL10
PAXCDC40
PAXCDC10
SHRLPAX0
Analog
Input Module
Mounting Bracket for LPAX
LX Custom Units Label * Listed Separately
MBLPAX00
Accessories
SFCRD2 PC Configuration Software for Windows 98, ME, 2000, XP SFCRD200
Dual Process Input Module, AC Powered MPAXDP00
Dual Process Input Module, DC/24 VAC Powered MPAXDP10

G
694 www.redlion.net
zLARGE LED DISPLAY READABLE TO 180 FEET
zVARIOUS ANALOG INPUT MODULES;
DC VOLTAGE AND CURRENT
PROCESS SIGNALS
TRUE RMS VOLTAGE AND CURRENT
THERMOCOUPLE OR RTD
STRAIN GAGE/BRIDGE
zALARMS, ANALOG OUTPUT, AND COMMUNICATION
zPROGRAMMABLE USER INPUTS
zUNIVERSAL AC POWERED (85 to 250 VAC)
zCRIMSON PROGRAMMING SOFTWARE
zNEMA 4X/IP65
GENERAL DESCRIPTION
The EPAX is a versatile display that can increase productivity by offering the
plant floor or production area a large visual display of their current status.
Whether your measurement is voltage, current, process, temperature, or strain
gage, the EPAX can satisfy your requirement. The EPAX accepts various analog
inputs through the use of input modules (MPAX) which allow the unit to adapt
to most any application. The MPAX Modules offer the same features as our
highly successful PAX Series Panel Meters. Additional plug-in option cards can
add alarms, analog output, and communication/bus capabilities, making the
EPAX a truly Intelligent Panel Meter.
SAFETY SUMMARY
All safety regulations, local codes and instructions that appear in this and
corresponding literature, or on equipment, must be observed to ensure personal
safety and to prevent damage to either the instrument or equipment connected
to it. If equipment is used in a manner not specified by the manufacturer, the
protection provided by the equipment may be impaired.
The protective conductor terminal is bonded to conductive
parts of the equipment for safety purposes and must be
connected to an external protective earthing system.
SPECIFICATIONS
Additional specifications, wiring, programming, and information for the
individual MPAX models are contained in the corresponding standard PAX
literature. This PAX literature is shipped with the ordered MPAX model.
1. DISPLAY: 4" (101 mm) Red LED
5-Digit (EPAX0500): -19999 to 99999
2. POWER REQUIREMENTS:
AC MPAX Modules: 85 to 250 VAC, 50/60 Hz, 18 VA
EPAX Display: 85 to 250 VAC, 50/60 Hz, 10 VA
3. INPUT: Accepts analog input modules, see “Selecting Your Display
Components and Option Cards.”
4. ANNUNCIATORS:
Display Indication: Three vertical dots on the left side of the unit identify
the displays for the following modes:
Setpoint Indication: Four vertical dots on the right side of the unit identify
the setpoint “ON” condition, with SP 1 being the top position through SP
4 at the bottom.
5. EPAX Programming: The unit is a large display, designed to be remotely
mounted. Therefore, the unit does not have a programming keypad. Unit
programming should be accomplished by one of the following methods:
Rear Terminal Block: External switches can be wired via the terminal block
to allow unit programming. A minimum of 3 switches would be required.
Optional Programming Remote (EPAXPGM0): This option provides a 10
foot interconnecting cable and programming box. The Programming
Remote contains buttons similar to the PAX, allowing easy programming
of the EPAX display.
Optional Serial Programming: Like all PAX units, you can purchase an RS232
or RS485 Comms Card and program the unit via Crimson, a Windows®
based software program.
MODEL EPAX- 5 DIGIT EXTRA LARGE PAX DISPLAY FOR ANALOG INPUTS
DIMENSIONS In inches (mm)
CAUTION: Risk of Danger
Read complete instructions prior to
installation and operation of the unit.
CAUTION: Risk of electric shock.
TOP Maximum
MIDDLE Minimum
BOTTOM Total
C
C
US LISTED
US LISTED
UL
R
IND. CONT. EQ.
51EB

G
6951-717-767-6511
WARNING: Disconnect all power to the unit before
installing Plug-in cards.
Adding Option Cards
The PAX and MPAX series meters can be fitted with up to three optional
plug-in cards. The details for each plug-in card can be reviewed in the
specification section of the PAX Bulletin. Only one card from each function type
can be installed at one time. The function types include Setpoint Alarms
(PAXCDS), Communications (PAXCDC), and Analog Output (PAXCDL). The
plug-in cards can be installed initially or at a later date.
SETPOINT ALARMS PLUG-IN CARDS (PAXCDS)
The PAX and MPAX series has 4 available setpoint alarm output plug-in
cards. Only one of these cards can be installed at a time. (Logic state of the
outputs can be reversed in the programming.) These plug-in cards include:
PAXCDS10 - Dual Relay, FORM-C, Normally open & closed
PAXCDS20 - Quad Relay, FORM-A, Normally open only
PAXCDS30 - Isolated quad sinking NPN open collector
PAXCDS40 - Isolated quad sourcing PNP open collector
ANALOG OUTPUT PLUG-IN CARD (PAXCDL)
Either a 0(4)-20 mA or 0-10 V retransmitted linear DC output is available
from the analog output plug-in card. The programmable output low and high
scaling can be based on various display values. Reverse slopes output is possible
by reversing the scaling point positions.
PAXCDL10 - Retransmitted Analog Output Card
COMMUNICATION PLUG-IN CARDS (PAXCDC)
A variety of communication protocols are available for the PAX and MPAX
series. Only one of these cards can be installed at a time. When programming
the unit via Crimson, the RS232 or RS485 Cards must be used.
PROGRAMMING SOFTWARE
Crimson is a Windows®based program that allows configuration of the
EPAX meter from a PC. Crimson offers standard drop-down menu commands,
that make it easy to program the EPAX meter. The EPAX program can then be
saved in a PC file for future use. A PAX serial plug-in card is required to
program the meter using the software.
6. CERTIFICATIONS AND COMPLIANCES:
SAFETY
UL Recognized Component, File #E179259, UL61010A-1, CSA C22.2
No. 1010-1
Recognized to U.S. and Canadian requirements under the Component
Recognition Program of Underwriters Laboratories, Inc.
UL Listed, File #E137808, UL508, CSA C22.2 No. 14-M95
LISTED by Und. Lab. Inc. to U.S. and Canadian safety standards
Type 4X Indoor Enclosure rating (Face only), UL50
IECEE CB Scheme Test Certificate #US/8843A/UL
CB Scheme Test Report #04ME11209-20041018
Issued by Underwriters Laboratories, Inc.
IEC 61010-1, EN 61010-1: Safety requirements for electrical equipment
for measurement, control, and laboratory use, Part 1.
IP65 Enclosure rating (Face only), IEC 529
ELECTROMAGNETIC COMPATIBILITY
EMC specifications determined by the MPAX module.
7. ENVIRONMENTAL CONDITIONS:
Operating Temperature Range: Determined by the MPAX module
Storage Temperature Range: -40 to 60°C
Operating and Storage Humidity: 0 to 85% max. RH (non-condensing)
Altitude: Up to 2000 meters
8. MOUNTING REQUIREMENTS:
Max. panel thickness is 0.375" (9.5 mm)
Min. panel thickness for NEMA 4/IP65 sealing is 0.060" (1.52 mm)
9. MODULE INSTALLATION:
24-pin shrouded connector on EPAX engages connector on MPAX module
upon installation. Shroud ensures proper alignment by providing a lead-in for
the module connector.
10. CONNECTIONS: Wiring connections are made to the EPAX terminal
block and MPAX module via high compression cage-clamp terminal blocks.
MPAX Module Wiring: Instructions are provided in the corresponding PAX
Bulletin.
EPAX Terminal Block Wiring:
Wire Strip Length: 0.3" (7.5 mm)
Wire Gage: 30-12 AWG copper wire
Maximum Torque: 5-7 inch-lbs (0.58-0.81 N-m)
CAUTION: DISCONNECT ALL POWER BEFORE
INSTALLING OR REMOVING MODULE
11. CONSTRUCTION: Aluminum front panel, enclosure, and rear cover with
textured black polyurethane paint for scratch and corrosion resistance
protection. Sealed front panel meets NEMA 4X/IP65 specifications for
indoor use when properly installed. Installation Category II, Pollution Degree
2. Panel gasket and keps nuts included.
12. WEIGHT: 5 lbs (2.25 kg) (less module)
* For detailed module and plug-in card specifications,
see corresponding PAX literature. (i.e. For MPAXD
specifications, see the PAXD literature)
OPTIONAL PLUG-IN CARDS AND ACCESSORIES
About the MPAX Input Modules
The MPAX Module serves as the input to the EPAX Display. There are several different modules to cover a variety of inputs. The MPAX module provides input
scaling which allows the EPAX to display most any engineering unit. Once the MPAX is inserted into the EPAX, the unit has the same functions and capabilities of
our PAX Series Intelligent Panel Meters. A full set of PAX programming instructions will be included with the MPAX module.
Selecting Your Display Components and Option Cards
To build a complete display unit, you will need an EPAX and an MPAX Input Module. The EPAX is only a display and will not operate without an MPAX module.
Please use the following chart to identify the appropriate MPAX module and EPAX Display that will satisfy your application.
OPTIONAL PLUG-IN CARD
COMPATABILITY
YES
YES
YES
YES
YES
YES
ANALOG
YES
YES
YES
EPAX0500
EPAX0500
EPAX0500
MPAXDP00
MPAXH000
MPAXS000
YES
Strain Gage/Loadcell
EPAX0500MPAXT000
YES
Temperature Inputs
EPAX0500MPAXP000
YES
Process Inputs
EPAX0500MPAXD000
COMMS
Universal DC Inputs
EPAX
DISPLAYS
85-250 VAC
YES
YES
YES
SIGNAL TYPE
YES
YES
MPAX MODULES*
YES
SETPOINT
Dual Process Inputs
True RMS AC Voltage/Current
PAXCDC4C - Modbus (Connector)
PAXCDC50 - Profibus-DP
PAXCDC40 - Modbus (Terminal)
PAXCDC20 - RS232 Serial (Terminal)
PAXCDC30 - DeviceNet
PAXCDC10 - RS485 Serial (Terminal) PAXCDC1C - RS485 Serial (Connector)
PAXCDC2C - RS232 Serial (Connector)

G
696 www.redlion.net
CAUTION: The MPAX main circuit board and the option cards
contain static sensitive components. Before handling the module
or the cards, discharge static charges from your body by
touching a grounded bare metal object. Handle the module by
the rear plastic cover only, and the option cards by the board
edges. Dirt, oil or other contaminants that contact the circuit
boards or components can adversely affect circuit operation.
WARNING: Exposed line voltage exists on the MPAX main circuit
board and the option cards. DO NOT apply power to the
module OR load circuits until the module is properly installed
in the EPAX case.
NOTE: All module and option card labels must be installed as
shown for safety purposes.
Removing The MPAX Module
To remove the MPAX Module from the EPAX Display, first remove
all power and load circuits. Then insert a flat screwdriver blade
(3/16" or 1/4") into the narrow slot between the EPAX rear cover
plate and the module’s plastic cover as illustrated in
Figure 2. Twist the screwdriver in the direction
shown to disengage the internal connectors
while firmly squeezing and pulling back
on the rear finger tabs (top and
bottom). Carefully slide the
module out of the EPAX
case, keeping it
properly
aligned with
the case
opening.
1.0 ASSEMBLING THE DISPLAY
Prior to installing the EPAX Display, it is recommended that
the MPAX and any option cards be assembled first. This will
allow you the opportunity to insure all the boards are fitted
properly into their connectors.
Installing the Option Cards
If your application requires option cards, they should be
installed into the MPAX before it is installed into the EPAX
Display. Refer to the literature enclosed with the option cards for
installation instruction.
Installing the MPAX
Remove the MPAX case (plastic) from the rear of the
EPAX by removing the two screws and pulling off the metal
holding bracket. Install the MPAX into plastic case by
aligning the front connector of the MPAX with the hole in
the front of the plastic case. The module must be oriented
as shown with terminal #1 toward the top of the EPAX
case. Next, insert the MPAX case into the EPAX by lightly
pushing the connector of the MPAX into the connector of
the EPAX PC board. Place holding bracket over the plastic
case and install the two screws.
Installing the Labels
Each option card and the MPAX are shipped with a connection
label. These labels must be applied to the rear of the EPAX in the
positions shown in the drawing. Figure 1, Installing an MPAX Module and Option Cards
Figure 2, Removing an MPAX Module

G
6971-717-767-6511
2.0 INSTALLING THE DISPLAY
EPAX DISPLAY INSTALLATION
The EPAX display is intended to be mounted
into a panel or enclosure. The display is provided
with a gasket to provide a water-tight seal. The
recommended minimum panel thickness for
NEMA 4/IP65 sealing is 0.060" (1.57 mm).
For panel mounting, prepare the panel
cut-out to the dimensions shown in
Figure 3. The supplied template may be
used to mark the cut-out and hole
locations on the panel. After the panel
cut-out has been deburred, slide the
panel gasket over the rear of the display
and onto the mounting studs. Insert the
display into the panel cut-out as
illustrated in Figure 4. Install 14 # 10-32
keps nuts (supplied) and tighten evenly
for uniform gasket compression. Do not
over-tighten the nuts.
By using additional mounting accessories,
the EPAX can be surface-wall mounted,
suspended, or bottom mounted. Separate installation
instructions are provided with the mounting accessories.
Environment And Cleaning
The display should be installed in a location that does not exceed
the maximum operating temperature and provides good air
circulation. Placing the system near devices that generate
excessive heat should be avoided.
The bezel should be cleaned only with a soft cloth and
neutral soap product. Do NOT use solvents. Continuous
exposure to direct sunlight may accelerate the aging
process of the bezel.
Figure 4, Installing The EPAX Into A Panel
Figure 3, Panel Cut-out for the EPAX
DIMENSIONS In inches (mm)

G
698 www.redlion.net
Once assembled, the EPAX and MPAX have all the
same functions and capabilities of our PAX Series
Intelligent Panel Meters. Therefore, you will find the
appropriate PAX information packed with the MPAX
Module. Simply follow the instructions to wire and
program the display for your application.
Note: Both the EPAX and the MPAX module
require power. It is recommended to connect the
primary AC power to the EPAX terminal block, then
jumper to the MPAX module.
3.0 WIRING AND PROGRAMMING THE DISPLAY
EPAX TERMINAL BLOCK
RJ12 CONNECTOR ON BOTTOM OF UNIT
Rear Terminal Block
External normally open switches can be wired via the terminal block to allow
unit programming. A minimum of 3 switches would be required. Each
external switch must be wired between the key and the common terminal.
Optional Programming Remote (EPAXPGM0)
This optional programming remote
plugs into the EPAX through an
RJ12 connector and a 10 foot cable.
The buttons on the programming box
function the same as the PAX unit.
Simply program the EPAX exactly
as the PAX instructions indicate. The
programming box can be left
connected to the EPAX for future
programming changes or can be
disconnected and used to program
additional EPAX units.
Optional Serial Programming
Like all PAX units, you can purchase an RS232 or RS485 Communications
Card and program the unit via Crimson, a Windows®based software program.
EPAX PROGRAMMING
The unit is a large display, designed to be remotely mounted. Therefore, the unit
does not have a programming keypad. Unit programming must be accomplished by
one of the following three methods:

G
6991-717-767-6511
EPAXPGM0
SFCRD200
PGM
SFCRD**
Accessories
PAXCDC30
PAXCDC4C
PAXCDC40
DeviceNet Communications Card (Terminal Block)
Extended Modbus Communications Card with Dual RJ11 Connector
Modbus Communications Card
Plug-In
Cards
Plug-In
Cards
EPAXENSH
SHREPAX0
PAXCDL10
PAXCDC50
Analog Output Card
Profibus-DP Communications Card
PAXCDL*
EPAX NEMA 4/IP65 Enclosure and Shroud
Shroud for EPAX
PAXCDC20
PAXCDC2C
RS232 Serial Communications Output Card with Terminal Block
Extended RS232 Serial Communications Output Card with 9 Pin D Connector
EN/SH
SHR
PAXCDC1C
PAXCDC10RS485 Serial Communications Output Card with Terminal Block
PAXCDC*
ENC12000
PAXCDS40Quad Setpoint Sourcing Open Collector Output Card
NEMA 4/IP65 Enclosure for EPAX
ENC12
PAXCDS30Quad Setpoint Sinking Open Collector Output Card
Analog
Input
Module
Display
PAXCDS20Quad Setpoint Relay Output Card
TYPE
PAXCDS10Dual Setpoint Relay Output Card
PAXCDS
MPAXT000
MPAXP000
MPAXS000
MPAXH000
MPAXDP00
MPAXD000
EPAX0500
Thermocouple and RTD Module, AC Powered
Process Input Module, AC Powered
Strain Gage/Bridge Input Module, AC Powered
AC True RMS Voltage and Current Module, AC Powered
Dual Process Input Module, AC Powered
Universal DC Input Module, AC Powered
5-Digit Extra Large Display for Analog MPAX Modules
MPAX
EPAX
PART NUMBERSDESCRIPTIONMODEL NO.
ORDERING INFORMATION
Programming Remote for EPAX with 10 foot cable
Crimson 2 PC Configuration Software for Windows 98, ME, 2000 and XP
*Refer to “Selecting Your Display Components and Option Cards.”
**Crimson software is available for download from http://www.redlion.net/
TROUBLESHOOTING
For technical assistance, contact technical support.
Extended RS485 Serial Communications Output Card with Dual RJ11 Connector

G
700 www.redlion.net
zLARGE LED DISPLAY READABLE TO 180 FEET
zVARIOUS DIGITAL INPUT MODULES;
COUNT AND RATE INPUT
CLOCK/TIMER
SERIAL SLAVE
zALARMS, ANALOG OUTPUT, AND COMMUNICATION
zPROGRAMMABLE USER INPUTS
zUNIVERSAL AC POWERED (85 to 250 VAC)
zPC SOFTWARE FOR METER CONFIGURATION
zNEMA 4X/IP65
GENERAL DESCRIPTION
The EPAX Display is a versatile display that can increase productivity by
offering the plant floor or production area a large visual display of their current
status. Whether your measurement is rate, count, or time, the EPAX can satisfy
your requirement. The EPAX displays accept various digital inputs through the
use of input modules (MPAX) which allow the unit to adapt to most any
application. The MPAX Modules offer the same features as our highly
successful PAX Series Panel Meters. Additional plug-in option cards can add
alarms, analog output, and communication/bus capabilities, making the EPAX a
truly Intelligent Panel Meter.
SAFETY SUMMARY
All safety regulations, local codes and instructions that appear in this and
corresponding literature, or on equipment, must be observed to ensure personal
safety and to prevent damage to either the instrument or equipment connected
to it. If equipment is used in a manner not specified by the manufacturer, the
protection provided by the equipment may be impaired.
The protective conductor terminal is bonded to conductive
parts of the equipment for safety purposes and must be
connected to an external protective earthing system.
SPECIFICATIONS
Additional specifications, wiring, programming, and information for the
individual MPAX models are contained in the corresponding standard PAX
literature. This PAX literature is shipped with the ordered MPAX model.
1. DISPLAY: 4" (101 mm) Red LED
6-Digit (EPAX0600): (-99999 to 999999)
2. POWER REQUIREMENTS:
AC MPAX Modules: 85 to 250 VAC, 50/60 Hz, 18 VA
EPAX Display: 85 to 250 VAC, 50/60 Hz, 10 VA
3. INPUT: Accepts digital input modules, see “Selecting Your Display
Components and Option Cards.”
4. ANNUNCIATORS:
Display Indication: Three vertical dots on the left side of the unit identify
the displays for the following modules:
Setpoint Indication: Four vertical dots on the right side of the unit identify
the setpoint “ON” condition, with SP 1 being the top position through SP
4 at the bottom.
5. EPAX Programming: The unit is a large display, designed to be remotely
mounted. Therefore, the unit does not have a programming keypad. Unit
programming should be accomplished by one of the following methods:
Rear Terminal Block: External switches can be wired via the terminal block
to allow unit programming. A minimum of 3 switches would be required.
Optional Programming Remote (EPAXPGM0): This option provides a 10
foot interconnecting cable and programming box. The Programming
Remote contains buttons similar to the PAX, allowing easy programming
of the EPAX display.
Optional Serial Programming: Like all PAX units, you can purchase an RS232
or RS485 Comms Card and program the unit via Windows®based
software programs.
MODEL EPAX- 6 DIGIT EXTRA LARGE PAX DISPLAY FOR DIGITAL INPUTS
DIMENSIONS In inches (mm)
CAUTION: Risk of Danger.
Read complete instructions prior to
installation and operation of the unit.
CAUTION: Risk of electric shock.
COUNT/RATE CLOCK
TOP Display A Timer
MIDDLE Display B Count
BOTTOM Display C Date
C
C
US LISTED
US LISTED
UL
R
IND. CONT. EQ.
51EB

G
7011-717-767-6511
WARNING: Disconnect all power to the unit before
installing Plug-in cards.
Adding Option Cards
The PAX and MPAX series meters can be fitted with up to three optional plug-
in cards. The details for each plug-in card can be reviewed in the specification
section of the PAX Bulletin. Only one card from each function type can be
installed at one time. The function types include Setpoint Alarms (PAXCDS),
Communications (PAXCDC), and Analog Output (PAXCDL). The plug-in cards
can be installed initially or at a later date.
SETPOINT ALARMS PLUG-IN CARDS (PAXCDS)
The PAX and MPAX series has 4 available setpoint alarm output plug-in
cards. Only one of these cards can be installed at a time. (Logic state of the
outputs can be reversed in the programming.) These plug-in cards include:
PAXCDS10 - Dual Relay, FORM-C, Normally open & closed
PAXCDS20 - Quad Relay, FORM-A, Normally open only
PAXCDS30 - Isolated quad sinking NPN open collector
PAXCDS40 - Isolated quad sourcing PNP open collector
ANALOG OUTPUT PLUG-IN CARD (PAXCDL)
Either a 0(4)-20 mA or 0-10 V retransmitted linear DC output is available
from the analog output plug-in card. The programmable output low and high
scaling can be based on various display values. Reverse slopes output is possible
by reversing the scaling point positions.
PAXCDL10 - Retransmitted Analog Output Card
COMMUNICATION PLUG-IN CARDS (PAXCDC)
A variety of communication protocols are available for the PAX and MPAX
series. Only one of these cards can be installed at a time. When programming the
unit via Crimson (for MPAXI000) or SFPAX (for MPAXCK00 or MPAXTM00),
the RS232 or RS485 Cards must be used.
PROGRAMMING SOFTWARE
CRIMSON - MPAXI000 Only
Crimson is a Windows®based program that allows configuration of the
EPAX meter from a PC. Crimson offers standard drop-down menu commands,
that make it easy to program the EPAX meter. The EPAX program can then be
saved in a PC file for future use. A PAX serial plug-in card is required to
program the meter using the software.
SFPAX - MPAXCK00 and MPAXTM00 Only
The SFPAX is a Windows®based program that allows configuration of the
EPAX meter from a PC. Using the SFPAX makes it easier to program the EPAX
meter and allows saving the PAX program in a PC file for future use. On-line
help is available within the software. A PAX serial plug-in card is required to
program the meter using the software.
6. CERTIFICATIONS AND COMPLIANCES:
SAFETY
UL Recognized Component, File #E179259, UL61010A-1, CSA C22.2
No. 1010-1
Recognized to U.S. and Canadian requirements under the Component
Recognition Program of Underwriters Laboratories, Inc.
UL Listed, File #E137808, UL508, CSA C22.2 No. 14-M95
LISTED by Und. Lab. Inc. to U.S. and Canadian safety standards
Type 4X Indoor Enclosure rating (Face only), UL50
IECEE CB Scheme Test Certificate #US/8843/UL
CB Scheme Test Report #04ME11209-20041018
Issued by Underwriters Laboratories, Inc.
IEC 61010-1, EN 61010-1: Safety requirements for electrical equipment
for measurement, control, and laboratory use, Part 1.
IP65 Enclosure rating (Face only), IEC 529
ELECTROMAGNETIC COMPATIBILITY
EMC specifications determined by the MPAX module.
7. ENVIRONMENTAL CONDITIONS:
Operating Temperature Range: Determined by the MPAX module
Storage Temperature Range: -40 to 60°C
Operating and Storage Humidity: 0 to 85% max. RH (non-condensing)
Altitude: Up to 2000 meters
8. MOUNTING REQUIREMENTS:
Max. panel thickness is 0.375" (9.5 mm)
Min. panel thickness for NEMA 4/IP65 sealing is 0.060" (1.52 mm)
9. MODULE INSTALLATION:
24-pin shrouded connector on EPAX engages connector on MPAX module
upon installation. Shroud ensures proper alignment by providing a lead-in for
the module connector.
10. CONNECTIONS: Wiring connections are made to the EPAX terminal
block and MPAX module via high compression cage-clamp terminal blocks.
MPAX Module Wiring: Instructions are provided in the corresponding PAX
Bulletin.
EPAX Terminal Block Wiring:
Wire Strip Length: 0.3" (7.5 mm)
Wire Gage: 30-12 AWG copper wire
Maximum Torque: 5-7 inch-lbs (0.58-0.81 N-m)
CAUTION: DISCONNECT ALL POWER BEFORE
INSTALLING OR REMOVING MODULE
11. CONSTRUCTION: Aluminum front panel, enclosure, and rear cover with
textured black polyurethane paint for scratch and corrosion resistance
protection. Sealed front panel meets NEMA 4X/IP65 specifications for
indoor use when properly installed. Installation Category II, Pollution Degree
2. Panel gasket and keps nuts included.
12. WEIGHT: 5 lbs (2.25 kg) (less module)
* For detailed module and plug-in card specifications,
see corresponding PAX literature. (i.e. For MPAXI
specifications, see the PAXI literature)
OPTIONAL PLUG-IN CARDS AND ACCESSORIES
About the MPAX Input Modules
The MPAX Module serves as the input to the EPAX Display. There are several different modules to cover a variety of inputs. The MPAX module provides input
scaling which allows the EPAX to display most any engineering unit. Once the MPAX is inserted into the EPAX, the unit has the same functions and capabilities of
our PAX Series Intelligent Panel Meters. A full set of PAX programming instructions will be included with the MPAX module.
Selecting Your Display Components and Option Cards
To build a complete display unit, you will need an EPAX and an MPAX Input Module. The EPAX is only a display and will not operate without an MPAX module.
Please use the following chart to identify the appropriate MPAX module and EPAX Display that will satisfy your application.
OPTIONAL PLUG-IN CARD COMPATABILITY
-
YES
-
-
-
REAL-TIME
CLOCK
-
-
-
-
YES
ANALOG
YES
YES
EPAX0600
EPAX0600
MPAXTM00
MPAXCK00
-
Timer
Real-Time Clock/Timer
EPAX0600MPAXR000
-
Rate
EPAX0600MPAXC000
YES
Count
EPAX0600MPAXI000
COMMS
Count/Rate/Serial Slave
EPAX
DISPLAYS
85-250 VAC
YES
YES
SIGNAL TYPE
YES
YES
MPAX MODULES*
YES
SETPOINT
PAXCDC4C - Modbus (Connector)PAXCDC40 - Modbus (Terminal)
PAXCDC2C - RS232 Serial (Connector)PAXCDC20 - RS232 Serial (Terminal)
PAXCDC50 - Profibus-DP
PAXCDC30 - DeviceNet
PAXCDC1C - RS485 Serial (Connector)PAXCDC10 - RS485 Serial (Terminal)

G
702 www.redlion.net
CAUTION: The MPAX main circuit board and the option cards
contain static sensitive components. Before handling the module
or the cards, discharge static charges from your body by
touching a grounded bare metal object. Handle the module by
the rear plastic cover only, and the option cards by the board
edges. Dirt, oil or other contaminants that contact the circuit
boards or components can adversely affect circuit operation.
WARNING: Exposed line voltage exists on the MPAX main circuit
board and the option cards. DO NOT apply power to the
module OR load circuits until the module is properly installed
in the EPAX case.
NOTE: All module and option card labels must be installed as
shown for safety purposes.
Removing The MPAX Module
To remove the MPAX Module from the EPAX Display, first remove
all power and load circuits. Then insert a flat screwdriver blade
(3/16" or 1/4") into the narrow slot between the EPAX rear cover
plate and the module’s plastic cover as illustrated in
Figure 2. Twist the screwdriver in the direction
shown to disengage the internal connectors
while firmly squeezing and pulling back
on the rear finger tabs (top and
bottom). Carefully slide the
module out of the EPAX
case, keeping it
properly
aligned with
the case
opening.
1.0 ASSEMBLING THE DISPLAY
Prior to installing the EPAX Display, it is recommended that the
MPAX and any option cards be assembled first. This will
allow you the opportunity to insure all the boards are fitted
properly into their connectors.
Installing the Option Cards
If your application requires option cards, they should be
installed into the MPAX before it is installed into the EPAX
Display. Refer to the literature enclosed with the option cards
for installation instruction.
Installing the MPAX
Remove the MPAX case (plastic) from the rear of the
EPAX by removing the two screws and pulling off the
metal holding bracket. Install the MPAX into plastic case
by aligning the front connector of the MPAX with the hole
in the front of the plastic case. The module must be oriented
as shown with terminal #1 toward the top of the EPAX
case. Next, insert the MPAX case into the EPAX by lightly
pushing the connector of the MPAX into the connector of
the EPAX PC board. Place holding bracket over the plastic
case and install the two screws.
Installing the Labels
Each option card and the MPAX are shipped with a
connection label. These labels must be applied to the rear of the
EPAX in the positions shown in the drawing.
Figure 1, Installing an MPAX Module and Option Cards
Figure 2, Removing an MPAX Module

G
7031-717-767-6511
2.0 INSTALLING THE DISPLAY
EPAX DISPLAY INSTALLATION
The EPAX display is intended to be mounted
into a panel or enclosure. The display is provided
with a gasket to provide a water-tight seal. The
recommended minimum panel thickness for
NEMA 4/IP65 sealing is 0.060" (1.57 mm).
For panel mounting, prepare the panel
cut-out to the dimensions shown in
Figure 3. The supplied template may be
used to mark the cut-out and hole
locations on the panel. After the panel
cut-out has been deburred, slide the
panel gasket over the rear of the display
and onto the mounting studs. Insert the
display into the panel cut-out as
illustrated in Figure 4. Install 14 # 10-32
keps nuts (supplied) and tighten evenly
for uniform gasket compression. Do not
over-tighten the nuts.
By using additional mounting accessories,
the EPAX can be surface-wall mounted,
suspended, or bottom mounted. Separate installation
instructions are provided with the mounting accessories.
Environment And Cleaning
The display should be installed in a location that does not exceed
the maximum operating temperature and provides good air
circulation. Placing the system near devices that generate
excessive heat should be avoided.
The bezel should be cleaned only with a soft cloth and
neutral soap product. Do NOT use solvents. Continuous
exposure to direct sunlight may accelerate the aging
process of the bezel.
Figure 4, Installing The EPAX Into A Panel
Figure 3, Panel Cut-out for the EPAX
DIMENSIONS In inches (mm)

G
704 www.redlion.net
Once assembled, the EPAX and MPAX have all the same functions and
capabilities of our PAX Series Intelligent Panel Meters. Therefore, you
will find the appropriate PAX information packed with the MPAX
Module. Simply follow the instructions to wire and program the display
for your application.
Note: Both the EPAX and the MPAX module require power. It is
recommended to connect the primary AC power to the EPAX terminal
block, then jumper to the MPAX module.
EPAX PROGRAMMING
The unit is a large display, designed to be remotely mounted. Therefore,
the unit does not have a programming keypad. Unit programming must be
accomplished by one of the following three methods:
3.0 WIRING AND PROGRAMMING THE DISPLAY
EPAX TERMINAL BLOCK
RJ12 CONNECTOR ON BOTTOM OF UNIT
Rear Terminal Block
External normally open switches can be wired via the terminal block to allow
unit programming. A minimum of 3 switches would be required. Each
external switch must be wired between the key and the common terminal.
Optional Programming Remote (EPAXPGM0)
This optional programming remote
plugs into the EPAX through an
RJ12 connector and a 10 foot cable.
The buttons on the programming box
function the same as the PAX unit.
Simply program the EPAX exactly
as the PAX instructions indicate. The
programming box can be left
connected to the EPAX for future
programming changes or can be
disconnected and used to program
additional EPAX units.
Optional Serial Programming
Like all PAX units, you can purchase an RS232 or RS485 Comms Card and
program the unit via Windows®based software programs.

G
7051-717-767-6511
SFCRD200
EPAXPGM0
SFPAX
SFCRD**
PGM
SFPAX**
Accessories
PAXCDC30
PAXCDC4C
PAXCDC40
DeviceNet Communications Card
Extended Modbus Communications Card with Dual RJ11 Connector
Modbus Communications Card
Optional
Plug-In
Cards
EPAXENSH
SHREPAX0
PAXRTC00
PAXCDL10
PAXCDC50
Real-Time Clock Card (Replacement Only)
Analog Output Card
Profibus-DP Communications Card
PAXRTC*
PAXCDL*
EPAX NEMA 4/IP65 Enclosure and Shroud
Shroud for EPAX
PAXCDC2C
PAXCDC20
Extended RS232 Serial Communications Output Card with 9 Pin D Connector
RS232 Serial Communications Output Card with Terminal Block
EN/SH
SHR
PAXCDC1C
PAXCDC10RS485 Serial Communications Output Card with Terminal Block
PAXCDC*
ENC12000
PAXCDS40Quad Setpoint Sourcing Open Collector Output Card
NEMA 4/IP65 Enclosure for EPAX
ENC12
PAXCDS30Quad Setpoint Sinking Open Collector Output Card
Digital
Input
Module
Display
PAXCDS20Quad Setpoint Relay Output Card
TYPE
PAXCDS10Dual Setpoint Relay Output Card
PAXCDS
MPAXR000
MPAXC000
MPAXTM00
MPAXCK00
MPAXI000
EPAX0600
Rate Indicator Module, AC Powered
Count Indicator Module, AC Powered
Timer Module, AC Powered
Real-Time Clock Module, AC Powered
Count/Rate Indicator Module, AC Powered
6-Digit Extra Large Display for Digital MPAX Modules
MPAX
EPAX
PART NUMBERSDESCRIPTIONMODEL NO.
ORDERING INFORMATION
Programming Remote for EPAX with 10 foot cable
*Refer to “Selecting Your Display Components and Option Cards.”
**Available as a FREE download from the Red Lion website. www.redlion.net
TROUBLESHOOTING
For technical assistance, contact technical support.
Extended RS485 Serial Communications Output Card with Dual RJ11 Connector
Crimson 2 PC Configuration Software for Windows 98, ME, 2000 and XP (for
MPAXI000 Module)
PC Configuration Software for Windows 95/98 on 3.5"disk (for MPAXCK00 and
MPAXTM00 Modules)

G
706 www.redlion.net
This page intentionally left blank.

1-717-767-6511
SIGNAL
CONDITIONERS
H
The Trusted Source for
Innovative Control
Solutions
707

Page 713 Page 721 Page 729 Page 731
H
708 www.redlion.net
QUICK Specs
FREQUENCY INPUT ANALOG INPUT
Programmable to accept
a variety of sensors
25 KHz Max.
Programmable to accept
a variety of sensors
25 KHz Max.
0 to 10 mA, 0 to 20 mA,
2 to 10 mA 4 to 20 mA,
0 to 5 VDC, 1 to 5 VDC,
0 to 10 VDC and 2 to 10 VDC
DC Current, DC Voltage,
Process, RTD, Thermocouple,
Linear Resistance and
Potentiometer
Input
Frequency to Analog Converter Speed Switch Analog to Frequency Converter Universal Conversion Module
0 to 5 VDC, 0 to 10 VDC,
0 to 20 mA or 4 to 20 mA Single Form C Relay
0 to 50 Hz, 0 to 100 Hz,
0 to 250 Hz, 0 to 500 Hz,
0 to 1KHz, 0 to 2.5 KHz,
0 to 5 KHz and 0 to 10 KHz
Setpoint - Dual Form "A" Relay
Output
Analog - 0 to 20 mA, 4 to 20 mA,
0 to 5 VDC, 0 to 10 VDC
or the reverse of each
Low Frequency Cut-out,
Overrange Indication,
3 Way Isolation
Hysteresis and Offset 3 Way Isolation 3 Way Isolation
85 to 250 VAC 85 to 250 VAC 19.2 to 30 VDC 21.6 to 253 VAC or
19.2 to 300 VDC
Converts a Frequency
Input to an Analog
Current or Voltage
Provides a Contact Ouput
at a Setpoint Speed,
Overspeed, Underspeed,
or Zero Speed
Used to Isolate and Convert
Various Analog Signals to
Frequencies Signals
Used to Isolate and Convert
Various Analog Signals to
Standard Control Signals
79 mm (H) x 28 mm (W)
x 107 mm(D)
79 mm (H) x 28 mm (W)
x 107 mm(D)
93 mm (H) x 6.2 mm (W)
x 93 mm(D)
109 mm (H) x 24 mm (W)
x 104 mm(D)
Other Features/
Options
Dimensions
(Height)x (Width)
Power Source
Outputs
Description
IFMA IFMR AFCM IAMS
Signal Conditioners
Recommended
Applications
Page Number

Page 742 Page 750 Page 753 Page 758
0 to 500 mV
0 to 100 VDC or
0 to 100 mA DC
0 to 5 VDC, 0 to 10 VDC,
0 to 20 mA or 4 to 20 mA
0 to 500 mV, 0 to 20 VDC,
0 to 20 mA, +/- 500 mV, or
+/- 20 VDC
0 to 20 mA or 4 to 20 mA
Display
DC Current, DC Voltage
and Process Converter
DC Current, DC Voltage
and Process Converter Universal Conversion Module Loop Powered Isolator
0 to 5 VDC, 0 to 10 VDC,
0 to 1 mA DC, 0 to 20 mA
or 4 to 20 mA
0 to 5 VDC, 0 to 10 VDC,
0 to 20 mA or 4 to 20 mA
0 to 10 VDC, +/-10 VDC,
or 4 to 20 mA 0 to 20 mA
3 Way Isolation, Linear or
Square Root Extraction 3 Way Isolation
3 Way Isolation,
Accepts Positive and
Negative Signals
2 Way Isolation
11 to 36 VDC, 24 VAC 19.2 to 30 VDC 18 to 30 VDC Loop Powered
Used to Isolate and Convert
Various Analog Signals to
Standard Control Signals
Used to Isolate and Convert
Various Analog Signals to
Standard Control Signals
Used to Isolate and Convert
Various Analog Signals to
Standard Control Signals
Provides Ground Potential
Isolation of Analog
Control Circuits
79 mm (H) x 28 mm (W)
x 107 mm(D)
93 mm (H) x 6 mm (W)
x 102 mm(D)
99 mm (H) x 18 mm (W)
x 115 mm (D)
79 mm (H) x 25 mm
(W) x 93 mm(D)
Other Features/
Options
Dimensions
(Height)x (Width)
Power Source
Outputs
Description
Recommended
Applications
H
7091-717-767-6511
QUICK Specs
ANALOG INPUT
IAMA IAMA6 AAMA AIMI
Signal Conditioners
Page Number

Page 763 Page 775 Page 788 Page 796
2, 3, or 4 Wire RTD
100 Ohm Platinum (385 or 392)
or Resistance
J, K, T, E, or mV RS232, RS485
Protocols - RS232, RS485,
and Ethernet
Input
RTD to Analog Converter Thermocouple to
Analog Converter Serial Converter Modules Serial to Ethernet Converter
for Red Lion Products
4 to 20 mA or mV 4 to 20 mA or mV RS232, RS485 Protocols - RS232, RS485,
and Ethernet
2 Way Isolation,
Sensor Break Detection
2 Way Isolation,
Sensor Break Detection N/A N/A
12 to 42 VDC
9 to 32 VDC, Loop Powered
12 to 42 VDC
9 to 32 VDC, Loop Powered 9 to 32 VDC 24 VDC
Used to Convert an RTD Input
to a 4 to 20 mA Output
Used to Convert a Thermocouple
Input to a 4 to 20 mA Output Used to Convert
Serial Communications
Used to enable Red Lion
Products to Communication
via Ethernet
Model Dependent Model Dependent 79 mm (H) x 25 mm (W)
x 98 mm (D)
135 mm (H) x 45 mm (W)
x 106 mm (D)
Other Features/
Options
Dimensions
(Height)x (Width)
Power Source
Outputs
Description
Recommended
Applications
710 www.redlion.net
QUICK Specs
ANALOG INPUT COMMUNICATION
IRMA ITMA ICM4/5 ICM8
Signal Conditioners
H
Page Number

Page 802 *
7111-717-767-6511
N/A Serial 20 mA Current Loop
8 Port Ethernet switch Serial Converter Modules
N/A RS232, (GCM232)
RS422/485, (GCM422)
Unmanaged Switch
Auto Half/Full Duplex
Auto Crossing Detection
N/A
24 VDC 9 to 28 VDC (GCM232)
9 to 26 VDC (GCM422)
Multi-Drop Ethernet
Used to Convert
20 mA Current Loop to RS232
or RS422/485
101 mm (H) x 134 mm (W)
x 35 mm (D)
25 mm (H) x 54 mm (W)
x 110 mm (D) w/socket
SWITCH08 GCM
Input
Other Features/
Options
Dimensions
(Height)x (Width)
Power Source
Outputs
Description
Recommended
Applications
Page Number
H
QUICK Specs
COMMUNICATION
Signal Conditioners
*See website for product information.

H
712 www.redlion.net
This page intentionally left blank.

713
H
1-717-767-6511
SIMPLE ON-LINE RANGE SETTING
(Using Actual Input Signal or Signal Generator)
USER SETTABLE FULL SCALE FREQUENCY FROM
1 Hz to 25 KHz
FOUR OUTPUT OPERATING RANGES
(0 to 5 V, 0 to 10 V, 0 to 20 mA, and 4 to 20 mA)
PROGRAMMABLE INPUT CIRCUIT ACCEPTS OUTPUTS FROM A
VARIETY OF SENSORS
85 to 250 VAC and 9 to 32 VDC POWERED VERSIONS
AVAILABLE
LOW FREQUENCY CUT-OUT AND OVERRANGE INDICATION
3-WAY ELECTRICAL ISOLATION (POWER/INPUT/OUTPUT)
INPUT AND OUTPUT INDICATION LEDs
MODEL IFMA - DIN-RAIL FREQUENCY TO ANALOG CONVERTER
DESCRIPTION
The Model IFMA accepts a frequency input, and outputs an analog voltage or
current in proportion to the input frequency, with 0.1% accuracy. The full scale
input frequency can be set to any value from 1 Hz to 25 KHz, either with a
frequency source, or digitally with the on-board rotary switch and push-button.
The IFMA utilizes a seven position DIP switch, a rotary switch, a push-button
and two indication LEDs to accomplish input circuit configuration, operational
parameter set-up, and Input/Output indication. The input circuitry is DIP switch
selectable for a variety of sources.
The indication LEDs are used during normal operation to display the input
and output status of the IFMA. These LEDs are also used to provide visual
feedback to the user of the existing parameter settings during parameter set-up.
The IFMA operates in one of four output modes. The programmable minimum
and maximum response times provide optimal response at any input frequency.
The unit is equipped with a universal mounting foot for attachment to
standard DIN style mounting rails, including top hat profile rail according to EN
50 022 - 35 x7.5 and 35 x 15, and G profile rail according to EN 50 035 - G 32.
SAFETY SUMMARY
All safety related regulations, local codes and instructions that appear in the
manual or on equipment must be observed to ensure personal safety and to
prevent damage to either the instrument or equipment connected to it. If
equipment is used in a manner not specified by the manufacturer, the protection
provided by the equipment may be impaired.
SPECIFICATIONS
1. POWER:
AC Operation: 85 to 250 VAC, 48 to 62 Hz; 6.5 VA
DC Operation: 9 to 32 VDC; 2.5 W
Power Up Current: Ip = 600 mA for 50 msec. max.
2. SENSOR POWER: (AC version only) +12 VDC ±25% @ 60 mA max.
3. OPERATING FREQUENCY RANGE:
From 0 Hz to 25 KHz; user selectable.
4. SIGNAL INPUT: DIP switch selectable to accept signals from a variety of
sources, including switch contacts, outputs from CMOS or TTL circuits,
magnetic pickups, and all standard RLC sensors.
Current Sourcing: Internal 1 KΩpull-down resistor for sensors with current
sourcing output. (Max. sensor output current = 24 mA @ 24 V output.)
Current Sinking: Internal 3.9 KΩpull-up resistor for sensors with current
sinking output. (Max. sensor current = 3 mA.)
Low Bias: Input trigger levels VIL = 0.25 V, VIH = 0.75 V; for increased
sensitivity when used with magnetic pickups.
Hi Bias: Input trigger levels VIL = 2.5 V, VIH = 3.0 V; for logic level signals.
Max. Input Signal: ±90 V; 2.75 mA max. (With both Current Sourcing and
Current Sinking resistors switched off.)
5. SIGNAL VOLTAGE OUTPUT (Selectable):
0 to 5 VDC @ 10 mA max.
0 to 10 VDC @ 10 mA max.
6. SIGNAL CURRENT OUTPUT (Selectable):
0 to 20 mA @ 10 VDC min.
4 to 20 mA@ 10 VDC min.
7. OUTPUT COMPLIANCE:
Voltage: 10 V across a min. 1KΩload (10 mA). Factory calibrated for loads
greater than 1 MΩ.
Current: 20 mA through a max. 500Ωload (10 VDC).
8. ACCURACY: ±0.1% of full scale range (±0.2% for 0 to 5 VDC range).
9. RESOLUTION:
Voltage : 3.5 mV min.
Current: 5 μA min.
DIMENSIONS In inches (mm)
CAUTION: Risk of Danger.
Read complete instructions prior to
installation and operation of the unit.
CAUTION: Risk of electric shock.
ORDERING INFORMATION
UL Recognized Component,
File # E137808
MODEL NO. DESCRIPTION
PART NUMBERS FOR AVAILABLE
SUPPLY VOLTAGES
9 to 32 VDC 85 to 250 VAC
IFMA Pulse Rate to Analog Converter IFMA0035 IFMA0065
For more information on Pricing, Enclosures & Panel Mount Kits refer to the
RLC Catalog or contact your local RLC distributor.

714
H
www.redlion.net
BLOCK DIAGRAM
SPECIFICATIONS (Cont’d)
10. RESPONSE TIME: 5 msec +1 period to 10 sec +1 period; user selectable
11. INPUT IMPEDANCE: 33 KΩmin. with the sink and source DIP switches
in the OFF position (See Block Diagram).
12. INPUT AND POWER CONNECTIONS: Screw in terminal blocks.
13. ISOLATION BREAKDOWN VOLTAGE (Dielectric Withstand): 2200
V between power & input, and power & output; 500 V between input &
output for 1 minute.
14. CERTIFICATIONS AND COMPLIANCES:
SAFETY
UL Recognized Component, File #E137808, UL508, CSA C22.2 No. 14
Recognized to U.S. and Canadian requirements under the Component
Recognition Program of Underwriters Laboratories, Inc.
IECEE CB Scheme Test Certificate # UL1683A-176645/USA,
CB Scheme Test Report # 97ME50135-042297
Issued by Underwriters Laboratories, Inc.
IEC 61010-1, EN 61010-1: Safety requirements for electrical equipment
for measurement, control, and laboratory use, Part 1.
EMC EMISSIONS:
Meets EN 50081-2: Industrial Environment.
CISPR 11 Radiated and conducted emissions
EMC IMMUNITY:
Meets EN 50082-2: Industrial Environment.
ENV 50140 - Radio-frequency radiated electromagnetic field 1
ENV 50141 - Radio-frequency conducted electromagnetic field
EN 61000-4-2 - Electrostatic discharge (ESD) 2
EN 61000-4-4 - Electrical fast transient/burst (EFT)
EN 61000-4-8 - Power frequency magnetic field
Notes:
1. For operation without loss of performance:
Unit is mounted on a rail in a metal enclosure (Buckeye SM7013-0 or
equivalent) and I/O cables are routed in metal conduit connected to
earth ground.
2. This device was designed for installation in an enclosure. To avoid
electrostatic discharge, precautions should be taken when the device is
mounted outside an enclosure. When working in an enclosure (ex. making
adjustments, setting switches, etc.) typical anti-static precautions should
be observed before touching the unit.
Refer to the EMC Installation Guidelines section of this bulletin for
additional information.
15. ENVIRONMENTAL CONDITIONS:
Operating Temperature: 0 to 50°C
Storage Temperature: -40 to 80°C
Operating and Storage Humidity: 85% max. (non-condensing) from 0°C
to 50°C.
Altitude: Up to 2000 meters
16. CONSTRUCTION: Case body is green, high impact plastic. Installation
Category II, Pollution Degree 2
17. WEIGHT: 6 oz. (0.17 Kg)
OVERVIEW
The Model IFMA continuously monitors a frequency input and outputs a
voltage or current signal in proportion to the input signal. The output is accurate
to ±0.1% of full scale for Operating Modes 2, 3, and 4. Operating Mode 1 is
accurate to ±0.2% of full scale. The green Input LED blinks at the rate of the
input frequency. At about 100 Hz, the Input LED will appear to be solid on. At
very low frequencies, the Input LED blinks slowly and may also appear to be
solid on. A loss of signal may also cause the Input LED to remain on, depending
on the DIP switch set-up. In this case, the red LED also turns on.
The Minimum Response Time parameter sets the minimum update time of the
output. The actual response time is the Minimum Response Time plus up to one
full period of the input signal. The IFMA counts the negative edges occurring
during the update time period, and computes the average frequency value for that
time. This action filters out any high frequency jitter that may be present in the
input signal. The longer the Minimum Response Time, the more filtering occurs.
The Maximum Response Time parameter sets the Low Frequency Cut-out
response time for the unit. If a new edge is not detected within the time specified
by the Maximum Response Time setting, the unit sets the output to the
existing Low Frequency Cut-out Value setting depending on the selected range
and calibration setting.
The unit also indicates Low Frequency Cut-out by turning ON the output
LED. The Maximum Response Time can be set shorter than the Minimum
Response Time. In this case, as long as the input signal period is shorter than the
Maximum Response Time, the unit continues to indicate the input frequency at
its output. But, if the input period at any time exceeds the Maximum Response
Time, the unit immediately takes the output to the Low Frequency Cut-out
Value, regardless of the Minimum Response Time setting.
The IFMA is calibrated at the factory for all of the selected ranges. However,
the user can adjust the minimum calibration to any value less than the Full Scale
value, and the Full Scale value to any value greater than the minimum value. If the
minimum and full scale values are brought closer together, the accuracy of the unit
decreases proportionate to the decreased range of the unit (See Calibration).

715
H
1-717-767-6511
EMC INSTALLATION GUIDELINES
Although this unit is designed with a high degree of immunity to
ElectroMagnetic Interference (EMI), proper installation and wiring methods
must be followed to ensure compatibility in each application. The type of the
electrical noise, source or coupling method into the unit may be different for
various installations. The unit becomes more immune to EMI with fewer I/O
connections. Cable length, routing, and shield termination are very important
and can mean the difference between a successful installation or troublesome
installation.
Listed below are some EMC guidelines for successful installation in an
industrial environment.
1. Use shielded (screened) cables for all Signal and Control inputs. The shield
(screen) pigtail connection should be made as short as possible. The
connection point for the shield depends somewhat upon the application.
Listed below are the recommended methods of connecting the shield, in order
of their effectiveness.
a. Connect the shield only at the rail where the unit is mounted to earth
ground (protective earth).
b. Connect the shield to earth ground at both ends of the cable, usually when
the noise source frequency is above 1 MHz.
c. Connect the shield to common of the unit and leave the other end of the
shield unconnected and insulated from earth ground.
2. Never run Signal or Control cables in the same conduit or raceway with AC
power lines, conductors feeding motors, solenoids, SCR controls, and
heaters, etc. The cables should be run in metal conduit that is properly
grounded. This is especially useful in applications where cable runs are long
and portable two-way radios are used in close proximity or if the installation
is near a commercial radio transmitter.
3. Signal or Control cables within an enclosure should be routed as far away as
possible from contactors, control relays, transformers, and other noisy
components.
4. In extremely high EMI environments, the use of external EMI suppression
devices, such as ferrite suppression cores, is effective. Install them on Signal
and Control cables as close to the unit as possible. Loop the cable through the
core several times or use multiple cores on each cable for additional protection.
Install line filters on the power input cable to the unit to suppress power line
interference. Install them near the power entry point of the enclosure. The
following EMI suppression devices (or equivalent) are recommended:
Ferrite Suppression Cores for signal and control cables:
Fair-Rite # 0443167251 (RLC #FCOR0000)
TDK # ZCAT3035-1330A
Steward #28B2029-0A0
Line Filters for input power cables:
Schaffner # FN610-1/07 (RLC #LFIL0000)
Schaffner # FN670-1.8/07
Corcom #1VR3
Note: Reference manufacturer’s instructions when installing a line filter.
5. Long cable runs are more susceptible to EMI pickup than short cable runs.
Therefore, keep cable runs as short as possible.
WIRING CONNECTIONS
All conductors should meet voltage and current ratings for each terminal.
Also cabling should conform to appropriate standards of good installation, local
codes and regulations. It is recommended that power supplied to the unit (AC
or DC) be protected by a fuse or circuit breaker.
POWER AND OUTPUT CONNECTIONS
AC Power
Primary AC power is connected to terminals 10 and 12 (labeled AC). For best
results, the AC Power should be relatively “clean” and within the specified
variation limits. Drawing power from heavily loaded circuits or from circuits
that also power loads that cycle on and off, should be avoided.
DC Power
The DC power is connected to terminals 10 and 12. The DC plus (+) power
is connected to terminal 10 and the minus (-) is connected to terminal 12.
It is recommended that separate supplies be used for sensor power and unit
power. Using the same supply for both will negate isolation between input and
power.
Current Output
When using Operating Mode 3 or 4, the output device is connected to
terminals 1(I+) and 3 (I-).
Voltage Output
When using Operating Mode 1 or 2, the output device is connected to
terminals 4 (V+) and 6 (V-).
Note: Although signals are present at
voltage and current outputs at the
same time, only the selected mode is
in calibration at any one time.
Example: Operating Mode 2 is
selected. The voltage level present
at the voltage terminals is in
calibration, but the signal
appearing at the current terminals
does not conform to either of the
current output modes.

716
H
www.redlion.net
CONFIGURING THE IFMA
To begin set-up, place DIP switch 4 to the on (up) position. DIP switches 5, 6, and 7 access unit configuration settings.
Upon entry to a set-up parameter, the Input LED blinks the current numerical value of a setting at a 1 Hz rate. A setting
of “1” is indicated by one blink (½ sec on, ½ sec off), through a setting of “9”, which is indicated by nine blinks. A setting
of “0” is indicated by a single short flash (40 msec on, 1 sec off). The decimal point position is the last number blinked.
After the entire value is indicated, the IFMA pauses two seconds and repeats the value.
During entry of a new value, if the Mode switch (S4) or any of the CFG DIP switch positions are changed before the
push button is pressed, the IFMA aborts the entry process and retains the previous setting.
The Model IFMA uses a comparator amplifier connected as a Schmidt
trigger circuit to convert the input wave form into the pulse form required for
proper circuit operation. Three set-up switches are used to configure the input
circuit to accept signals from a wide variety of sources, as follows:
S1 - ON: Connects a 1 KΩpull-down resistor for sensors with sourcing outputs.
(Maximum sensor output current is 24 mA @ 24 VDC output.)
S2 - ON: For logic level signals. Sets the input bias levels to VIL = 2.5 V, VIH
= 3.0 V.
OFF: For increased sensitivity when used with magnetic pickups. Sets the
input bias levels to VIL = 0.25 V, VIH = 0.75 V.
S3 - ON: Connects a 3.9 KΩpull-up resistor for sensors with current sinking
output. (Max. sensor current = 3 mA.)
INPUT CIRCUITS, SENSOR CONNECTIONS AND CONFIGURATION SWITCH SET-UP
CONNECTIONS & CONFIGURATION SWITCH SET-UP FOR VARIOUS SENSOR OUTPUTS
Note: Separate power supplies must be used for sensor power and input power to maintain the isolation breakdown voltage specification. If isolation between power
and input is not needed, then a single supply can be used for both unit and sensor power.
DIP SWITCH DESCRIPTION SECTION
Operating Mode (1.0)
Input Range Setting Using an Input Signal or Frequency Generator (2.0)
Input Range Setting Using the Rotary Switch (3.0)
Minimum Response Time (4.0)
Maximum Response Time (Low Frequency Cut-Out Setting) (5.0)
Analog Output Minimum Value (6.0)
Analog Output Full Scale Value (6.0)
Note: To return to normal operation,
place DIP switch 4 in the down
(RUN) position.
( ) Indicates Configuration Section
*Check sensor power requirements before
wiring.
*Check sensor power requirements before
wiring.
*Check sensor power requirements before
wiring.
*Check sensor power requirements before
wiring.
MAGNETIC PICKUPS
RECOMMENDED RULES FOR MAGNETIC PICKUP CONNECTIONS
1. Connect the shield to the common Terminal “9” at the input of the IFMA. DO NOT
connect the shield at the pickup end. Leave the shield “open” at the pickup and insulate
the exposed shield to prevent electrical contact with the frame or case. (Shielded cable,
supplied on some RLC magnetic pickups, has open shield on pickup end.)
2-WIRE PROXIMITY SENSORS
AC VERSION DC VERSION
OLDER STYLE RLC SENSORS WITH -EF OUTPUT
AC VERSION DC VERSION
INPUT FROM CMOS OR TTL
SENSORS WITH CURRENT SINK OUTPUT (NPN O.C.)
AC VERSION DC VERSION
SENSORS WITH CURRENT SOURCE OUTPUT (PNP O.C.)
AC VERSION DC VERSION
A.C. INPUTS FROM INVERTERS, A.C. TACHOMETERS,
GENERATORS, ETC.

717
H
1-717-767-6511
1.1 Place DIP switch 4 to the ON (up) position and DIP switches 5, 6, and 7 as shown.
1.2 Green input LED blinks the Setting corresponding to the Operating Mode shown below, pauses
and repeats the value.
Setting Operating Mode
1 0 to 5 VDC
2 0 to 10 VDC
3 0 to 20 mA
4 4 to 20 mA
Factory calibration values are restored when the Operating Mode is changed.
If existing operating mode setting is your desired requirement, this section is complete*.
Otherwise, continue with Step 1.3.
1.3 Press the push-button. The Green input LED blinks rapidly to indicate the Operating mode
setting is now accessed.
1.4 Turn the rotary switch to the selected numerical value for the output desired (see the list in Step
1.2).
1.5 Press the push-button. The Green input LED blinks value entered, pauses, and repeats the new
Operation setting.
If the new Operating mode setting is acceptable, this section is complete*.
If the new Operating mode setting is not the desired setting, repeat from Step 1.3.
If the Red output LED blinks, the rotary switch numerical value is invalid. Repeat Steps 1.4
and 1.5.
*Section complete; place DIP switch 4 to the Down position for normal operation, or change DIP
switches 5, 6, and 7 for the next Configuration Section.
1.0 Operating Mode (Analog Output)
Setting ‘2’
Selected
Step 1.2
Step 1.1
OUTPUT INDICATION
Over range on the output : The Output LED (red) turns on and the
Output is “clamped” at the maximum level.
Low Frequency Cut-Out : The Output LED (red) turns on to
indicate the input frequency is below the Zero Frequency setting.
Invalid Entry during Set-up : The Input LED (green) and the
Output LED (red) alternately blink until a valid entry is made.
FACTORY SETTINGS
Parameter Setting Value
Operating Mode 4 4 to 20 mA
Input Range 10.000 10 KHz
Minimum Response 0 5 msec
Maximum Response 0 1024 times Input Range Period (102 msec, 9.8 Hz)
2.1 Place DIP switch 4 to the ON position and DIP switches 5, 6, and 7 as shown.
2.2 The Green input LED blinks the existing Input Range setting as shown in the examples below.
Six full digits of numerical information blink with a short pause between digits and a longer
pause before repeating. The first five digits are the existing input range setting of the frequency
magnitude. The sixth digit is the frequency resolution (the number of digits to the right of the
decimal point).
Factory Setting Example Additional Example:
1 blink 1 2 blinks 2
2 sec pause 2 sec pause
single flash 0 5 blinks 5
2 sec pause Frequency 2 sec pause Frequency
single flash 0 setting single flash 0 setting
2 sec pause 2 sec pause
single flash 0 5 blinks 5
2 sec pause 2 sec pause
single flash 0 single flash 0
2 sec pause 2 sec pause
single flash 0 Resolution 2 blinks 2 Resolution
4 sec pause 4 sec pause
Frequency Resolution Frequency Resolution
1 0000 0 25050 2
Result: 10.000 KHz Result: 250.50 Hz
If the existing Input Range setting is your desired requirement, this section is complete*.
Otherwise, continue with Step 2.3.
2.3 Apply the maximum input signal.
2.4 Press the push-button. The Green input LED blinks rapidly. The acquisition process takes two
seconds plus one period of the input signal.
If the new input range setting is valid, the Green input LED turns on solid. Continue to Step 2.5.
If Red output LED blinks, the new input range setting is invalid, outside the acceptable 1 Hz
to 25 KHz range. Repeat Steps 2.3 and 2.4.
2.5 Press the push-button. The Green input LED blinks the new Input Range setting. This section
is complete*. Verify the Input Range setting as shown in Step 2.2.
*Section complete; place DIP switch 4 to the Down position for normal operation, or change DIP
switches 5, 6, and 7 for the next Configuration Section.
2.0 On-Line Input Range Setting Using Actual Input Signal Or Frequency Generator
Step 2.4
Step 2.2
Step 2.1
PREFERRED
PREFERRED
METHOD
METHOD
Step 1.4
Step 1.3

718
H
www.redlion.net
3.1 Place DIP switch 4 to the ON(up) position and DIP switches 5, 6, and 7 as shown.
3.2 The Green input LED blinks the existing Input Range setting, pauses and repeats. Six full digits
of numerical information blink with a short pause between digits and a longer pause at the end,
before repeating. The first five digits are the existing input range setting magnitude. The sixth
digit is the frequency resolution (the number of digits to the right of the decimal point).
If the existing Input Range setting is your desired requirement, this section is complete*.
Otherwise, continue with Step 3.3.
3.3 Determine the Input Range frequency and record in the space provided below.
Input Range Frequency Resolution
First 5 of 6 digits 6th digit
Example: 95.5 Hz Example: 15,500 Hz
95
•500 3 15500
•0
095
•50 2
0 095
•51
3.4 Press the push-button. The Green input LED blinks rapidly. Input Range setting is now
accessed.
3.5 Turn the rotary switch to the first selected numerical value. Press the push-button. The Green
input LED continues to blink rapidly. First of six digits is entered.
3.6 Turn the rotary switch to the second selected numerical value. Press the push-button. The Green
input LED continues to blink rapidly. Second of six digits is entered.
3.7 Repeat Step 3.6 three more times, then go to Step 3.8. This enters a total of five of the required
six numerical digits.
3.8 Turn the rotary switch to the selected numerical value for resolution requirement. Press the
push-button. The Green input LED blinks the new Input Range setting (as described in Step
2.2), pauses, and repeats the value.
If the new Input Range setting is acceptable, this section is complete*.
If the new Input Range setting is not the desired setting, repeat Steps 3.4, through 3.8.
If the Red output LED blinks, the numerical value entered is invalid. Repeat Steps 3.3 through 3.8.
*Section complete; place DIP switch 4 to the Down position for normal operation, or change DIP
switches 5, 6, and 7 for the next Configuration Section.
4.1 Position DIP switch 4 to the ON(up) position and DIP switches 5, 6, and 7 as shown.
4.2 The Green input LED blinks the corresponding Minimum Response Time Setting (see
following list), pauses and repeats.
Setting Time Setting Time
0 5 msec 5 200 msec
1 10 msec 6 500 msec
2 20 msec 7 1 sec
3 50 msec 8 5 sec (not valid for input range > 3906 Hz)
4 100 msec 9 10 sec (not valid for input range > 3906 Hz)
If the existing Minimum Response Time setting is your desired requirement, this section is
complete*. Otherwise, continue with Step 4.3.
4.3 Press the push-button. The Green input LED blinks rapidly. Minimum Response Time setting
is now accessed.
4.4 Turn the rotary switch to the selected numerical value for Minimum Response Time desired
(see list in Step 4.2).
4.5 Press the push-button. The Green input LED blinks the value entered, pauses, and repeats the
new Minimum Response Time setting.
If the new Minimum Response Time setting is acceptable, this section is complete*.
If the new Minimum Response Time setting is not acceptable, repeat from step 4.3.
If the Red output LED blinks, the rotary switch numerical value is invalid. Repeat Steps 4.4
and 4.5.
*Section complete; place DIP switch 4 to the Down position for normal operation, or change DIP
switches 5, 6, and 7 for the next Configuration Section.
3.0 Input Range Setting Using The Rotary Switch
4.0 Minimum Response Time Setting
Step 3.2
Step 4.2
Step 4.1
Step 3.1
Setting ‘2’
Selected
Setting ‘2’
Selected
AALLTTEERRNNAATTIIVVEE
MMEETTHHOODD
IIFF
IINNPPUUTT
SSIIGGNNAALL
IISS
NNOOTT
AAVVAAIILLAABBLLEE
Step 3.4
Step 4.3
Step 4.4
Step 3.5

719
H
1-717-767-6511
5.1 Place DIP switch 4 to the ON (up) position and DIP switches 5, 6, and 7 as shown.
5.2 The Green input LED blinks the corresponding Maximum Response Time Setting (see
following list), pauses and repeats.
If the existing Maximum Response Time setting is your desired requirement, this section is
complete*. Otherwise, continue with Step 5.3.
5.3 Press the push-button. The Green input LED blinks rapidly. Maximum Response Time setting
is now accessed.
5.4 Turn the rotary switch to the selected numerical value for Maximum Response Time desired.
(see list in Step 5.2)
5.5 Press the push-button. The Green input LED blinks the value entered, pauses, and repeats the
new Maximum Response Time setting.
If the new Maximum Response Time setting is acceptable, this section is complete*.
If the new Maximum Response Time setting is not acceptable, repeat from Step 5.3.
If the Red output LED blinks, the rotary switch numerical value is invalid. Repeat Steps 5.4
and 5.5.
*Section complete; place DIP switch 4 to the Down position for normal operation, or change DIP
switches 5, 6, and 7 for the next Configuration Section.
6.0 Calibration
Analog Output Minimum Value
5.0 Maximum Response Time Setting (Low Frequency Cut-Out Setting)
The IFMA is factory calibrated for all operating modes. These settings are
permanently stored in the unit’s configuration memory. The IFMA
automatically selects the proper calibration setting for the selected Operation
mode.
The Minimum and Full Scale output values established at the factory can be
changed using the calibration routines. The Minimum output value can be
adjusted to any value less than the Full Scale output value, and the Full Scale
value can be adjusted to any value greater than the Minimum value.
Changing the factory calibration settings does affect the accuracy of the unit.
Specified accuracy for modes 2, 3, and 4 holds until the factory calibration
range has been halved. This does not apply to mode 1, since it already uses only
half of the IFMA’s output range. When increasing the output range, the new
calibration settings can not exceed the factory Full Scale value by more than
10%. The 0 to 5 VDC range can be doubled.
The IFMA can store user calibration settings for only one mode at a time. If
calibration is changed for one operating mode, and the user then selects a
different operating mode, the unit reverts to factory calibration settings.
Calibration steps can be combined (added) to obtain a total calibration change.
This is done by repeated push-button entries of the same value, or different
values, before saving the change. The calibration steps as shown in the table at
right are approximations. A current or volt meter should be connected to the
appropriate output pins to verify the actual calibration setting.
Approximate Calibration Increments
ROTARY SWITCH VOLTAGE CURRENT
1 3 mV 5 µA
2 5 mV 10 µA
3 10 mV 25 µA
4 25 mV 50 µA
5 50 mV 100 µA
6 100 mV 200 µA
7 200 mV 400 µA
8 400 mV 800 µA
Calibration Direction
The default direction for calibration changes is up (increasing values) on
entry to either calibration routine. This direction can be toggled from within the
routine with the following steps:
1. Enter the calibration routine you wish to change (Minimum or Full Scale).
2. Press the push-button. The Green input LED blinks rapidly.
3. Turn the rotary switch to position 9. Press the push-button.
4. The Output LED indicates the direction of calibration:
OFF = Increasing Value
ON = Decreasing Value
Analog Output Full Scale Value
Step 5.2
Step 5.1
6.1 Connect a current or voltmeter of appropriate accuracy to the desired output pins (voltage or
current)
6.2 Place DIP switch 4 to the ON position and DIP switches 5, 6, and 7 as shown. The Green input
LED blinks slowly.
Step 6.2
Step 6.2
Step 6.2
Setting ‘9’
Selected
Setting Time
0
110 msec (100 Hz)
220 msec (50 Hz)
350 msec (20 Hz)
4100 msec (10 Hz)
1024 times Input Range period (40 msec min., 10 sec max.)
Setting Time
5200 msec (5 Hz)
6500 msec (2 Hz)
71 sec (1 Hz)
85 sec (.2 Hz)
910 sec (.1 Hz)
Step 5.3
Step 5.4

720
H
www.redlion.net
6.3 Press the push-button to enable the rotary switch. The Green input LED now blinks at a faster
rate, indicating that calibration values are accessible.
6.4 Turn rotary switch to appropriate numerical setting for calibration (see list in Step 6.0), while
monitoring the output signal. Press the push-button. Calibration is raised or lowered by this
approximate value, depending on calibration direction.
If this setting meets your requirements, go to step 6.5. If more calibration is required, repeat
step 6.4 until the calibration meets your requirements.
If you overshoot your desired value, reverse calibration direction as shown in 6.0 and
continue calibration until the value meets your requirements.
6.5 Turn the rotary switch to 0 and press the push-button. This saves the new user calibration setting.
If you want to return to factory calibration, exit Calibration and then re-enter. Turn rotary
switch to 0 and press push-button twice. This reloads the factory calibration setting for the
selected mode of operation.
When calibrating the Minimum output value, if the red output LED blinks while in the down
direction, the requested calibration setting is beyond the output’s absolute minimum value.
The calibration setting is held at the absolute minimum value. Reverse calibration direction
and repeat from step 6.4.
When calibrating Full Scale, if the red output LED blinks while in the up direction, the
requested calibration setting is beyond the output’s absolute maximum value. The calibration
setting is held at the maximum value. Reverse calibration direction and repeat from step 6.4.
If an attempt is made to calibrate the Full Scale value lower than the Minimum value, or
conversely, the Minimum value higher than the Full Scale value, the red output LED blinks,
and the IFMA sets the two values equal. Reverse calibration direction and repeat from step 6.4.
Calibration Example (Scaling):
A customer using the 0 to 10 VDC output range of the IFMA wants the Minimum value to be at 1 VDC. To do this,
connect a voltmeter to the output of the IFMA to monitor the output voltage. Access Configuration Mode by placing DIP
switch 4 to the ON (up) position. Access Analog Output Minimum value by placing DIP switches 5 and 7 up, and DIP
switch 6 down. Press the push-button to enable changes to the calibration value. Turn the rotary switch to position 8 and
press the push-button. The voltmeter should reflect an increase of about 400 mV. With the rotary switch still at position
8, press the push-button again. The voltmeter should now read approximately 800 mV. Turn the rotary switch to a
position lower than 8 to effect a smaller change in calibration. Continue adjusting the rotary switch and pressing the push-
button until 1 VDC is displayed on the voltmeter. Turn the rotary switch to position 0 and press the push-button. This
action saves the new calibration setting for the Minimum value.
TROUBLESHOOTING
For further technical assistance, contact technical support at the appropriate company numbers listed.
6.0 Calibration (Cont’d)
INSTALLATION
The unit is equipped with a universal mounting foot for attachment to
standard DIN style mounting rails, including G profile rail according to
EN50035 - G32 , and top hat (T) profile rail according to EN50022 - 35 x 7.5
and 35 x 15. The unit should be installed in a location that does not exceed the
maximum operating temperature and provides good air circulation. Placing
the unit near devices that generate excessive heat should be avoided.
G Rail Installation
To install the IFMA on a “G”
style DIN rail, angle the module so
that the upper groove of the “foot”
catches under the lip of the top rail.
Push the module toward the rail
until it snaps into place. To remove
a module from the rail, push up on
the bottom of the module while
pulling out and away from the rail.
T Rail Installation
To install the IFMA on a “T”
style rail, angle the module so
that the top groove of the “foot”
is located over the lip of the top
rail. Push the module toward the
rail until it snaps into place. To
remove a module from the rail,
insert a screwdriver into the slot
on the bottom of the “foot”, and
pry upwards on the module until
it releases from the rail.
APPLICATION
A customer needs a unit to output a signal to a chart recorder for a flow
rate system. There is an existing APLR rate indicator receiving an input
from a PSAC inductive proximity sensor. The IFMA Frequency to Analog
Converter is connected in parallel with the APLR to output the signal to the
chart recorder.
The flow rate is measured in gal/min. and needs to be converted to a 0 to
10 VDC signal. The Operating Mode of the IFMA is set for a 0 to 10 VDC
output signal. The PSAC measures 48 pulses/gal. with a maximum flow rate
of 525 gal/min. The Maximum Response Time is set to setting ‘9’ (10 sec).
The chart recorder will record 0 VDC at 0.125 gal/min, and 10 VDC at 525
gal/min.
The Input Range can be set one of two ways. By entering the calculated
maximum frequency with the rotary switch, or by applying the maximum
frequency signal of the process to the input of the IFMA. To set the input
with the rotary switch, first determine the maximum frequency generated by
the maximum output of the sensor using the following formula:
Max. Freq. = unit/measure x pulses/unit
seconds/measure
Max. Freq. = 525 GPM x 48 PPG = 420 Hz
60 sec.
Set the Input Range with the rotary switch to 420 Hz.
Setting ‘9’
Selected
Step 6.3
Step 6.4

721
H
1-717-767-6511
zSIMPLE ON-LINE TRIP FREQUENCY SETTING (USING ACTUAL
INPUT SIGNAL OR FREQUENCY GENERATOR)
zUSER SETTABLE TRIP FREQUENCY FROM 0.1 Hz to 25 KHz
zOVER-SPEED, UNDER-SPEED, AND ZERO-SPEED DETECTION
zRELAY LATCHING, ALARM OVERRIDE, AND ALARM RESET
FUNCTIONS
zPROGRAMMABLE INPUT CIRCUIT ACCEPTS OUTPUTS FROM
A VARIETY OF SENSORS
zHYSTERESIS AND OFFSET FUNCTIONS AVAILABLE
z85 to 250 VAC and 9 to 32 VDC VERSIONS AVAILABLE
zINPUT AND RELAY STATUS INDICATION LED’S
MODEL IFMR - DIN-RAIL SPEED SWITCH
DESCRIPTION
The Model IFMR accepts a frequency input, and controls a single relay
(SPDT) based on the value of the input frequency. The Trip frequency can be
set to any value from 0.1 Hz to 25 KHz. The IFMR can be set to trip on
overspeed, or underspeed (including zero speed). Offset and hysteresis values
can be incorporated into the trip setting to eliminate output chatter. LED
indicators for both the Input signal and the Relay status are provided. Two
separate input connections for external push-buttons are also provided. One
external input overrides the trip detection function, and holds the relay in the
release state as long as the input is pulled to common. The other external input
clears a latched trip condition when pulled to common.
The IFMR utilizes a seven position DIP switch, a rotary switch, a push-
button and two indication LEDs to accomplish input circuit configuration,
operational parameter set-up, input signal, and relay status indication. The input
circuitry is DIP switch selectable for a variety of sources.
The indication LEDs are used during normal operation to display the input
signal and relay status of the IFMR. These LEDs are also used to provide visual
feedback to the user of the current parameter settings during parameter set-up.
The IFMR operates in one of six output modes, as selected by the user. The
programmable Minimum Response Time provides optimum response vs. input
filtering for any input frequency. The offset and hysteresis settings provide
flexible adjustment of the relay trip and release points.
The unit is equipped with a universal mounting foot for attachment to
standard DIN style mounting rails, including top hat profile rail according to EN
50 022 - 35 x 7.5 and 35 x 15, and G profile rail according to EN 50 035 - G32.
SAFETY SUMMARY
All safety related regulations, local codes and instructions that appear in the
manual or on equipment must be observed to ensure personal safety and to
prevent damage to either the instrument or equipment connected to it. If
equipment is used in a manner not specified by the manufacturer, the protection
provided by the equipment may be impaired.
WARNING: SPEED SWITCHES MUST NEVER BE USED AS
PRIMARY PROTECTION AGAINST HAZARDOUS OPERATING
CONDITIONS. Machinery must first be made safe by inherent design,
or the installation of guards, shields, or other devices to protect personnel in
the event of a hazardous machine speed condition. The speed switch may be
installed to help prevent the machine from entering the unsafe speed.
SPECIFICATIONS
1. POWER:
AC Powered Versions: 85 to 250 VAC; 48 to 62 Hz; 5.5 VA
DC Powered Versions: 9 to 32 VDC; 2.0 W
Power Up Current: Ip = 600 mA for 50 msec max.
2. SENSOR POWER: (AC version only) +12 VDC ±25% @ 60 mA max.
3. OPERATING FREQUENCY RANGE: 0 Hz to 25 KHz
4. SIGNAL INPUT: DIP switch selectable to accept signals from a variety of
sources, including switch contacts, outputs from CMOS or TTL circuits,
magnetic pickups, and all standard RLC sensors.
Current Sourcing: Internal 1 KΩpull-down resistor for sensors with current
sourcing output. (Max. sensor output current = 24 mA @ 24 V output.)
Current Sinking: Internal 3.9 KΩpull-up resistor for sensors with current
sinking output. (Max. sensor current = 3 mA.)
Low Bias: Input trigger levers VIL = 0.25 V, VIH = 0.75 V; for increased
sensitivity when used with magnetic pickups.
Hi Bias: Input trigger levels VIL = 2.5 V, VIH = 3.0 V; for logic level signals.
Max. Input Signal: ±90 V; 2.75 mA max. (with both Current Sourcing and
Current Sinking resistors switched off).
ORDERING INFORMATION
DIMENSIONS In inches (mm)
MODEL NO. DESCRIPTION
PART NUMBERS FOR AVAILABLE
SUPPLY VOLTAGES
9 to 32 VDC 85 to 250 VAC
IFMR Speed Switch IFMR0036 IFMR0066
For more information on Pricing, Enclosures & Panel Mount Kits refer
to the RLC Catalog or contact your local RLC distributor.
UL Recognized Component,
File # E137808
CAUTION: Risk of Danger.
Read complete instructions prior to
installation and operation of the unit.
CAUTION: Risk of electric shock.

722
H
www.redlion.net
BLOCK DIAGRAM
SPECIFICATIONS (Cont’d)
5. CONTROL INPUTS: Active low (VIL = 0.5 V max.) internally pulled up to 5
VDC through a 100 KΩresistor (ISNK = 50 μA). Response Time = 1 msec.
Alarm Reset: Unlatches the relay when pulled to common while the input
frequency is in the release region.
Alarm Override: Causes the IFMR to unconditionally release the relay
when pulled to common.
6. RELAY CONTACT OUTPUT: FORM “C” (SPDT) contacts max. rating.
5 A @ 120/240 VAC or 28 VDC (resistive load), 1/8 H.P. @ 120 VAC
(inductive load). The operate time is 5 msec nominal and the release time is
3 msec nominal.
7. RELAY LIFE EXPECTANCY: 100,000 cycles at max. rating. (As load
level decreases, life expectancy increases.)
8. ACCURACY: ±0.1% of the trip frequency setting.
9. INPUT IMPEDANCE: 33 KΩmin. with the sink and source DIP switches
in the OFF positions. (See Block Diagram)
10. MINIMUM RESPONSE TIME: From 5 msec. +1 period to 10 sec. +1
period in ten steps (excluding relay operate time).
11. HYSTERESIS AND OFFSET: From 0.25% to 33.33% of Trip Frequency
in nine steps. Hysteresis and/or Offset can also be set to 0 (Disabled).
12. INPUT AND POWER CONNECTIONS: Screw in terminal blocks
13. ISOLATION BREAKDOWN VOLTAGE (Dielectric Withstand):
2200 V between power & input, and power & output; 500 V between input
& output for 1 minute.
14. CERTIFICATIONS AND COMPLIANCES:
SAFETY
UL Recognized Component, File #E137808, UL508, CSA 22.2 No. 14
Recognized to U.S. and Canadian requirements under the Component
Recognition Program of Underwriters Laboratories, Inc.
IECEE CB Scheme Test Certificate # UL1683A-176645/USA,
CB Scheme Test Report # 97ME50135-042297
Issued by Underwriters Laboratories, Inc.
IEC 61010-1, EN 61010-1: Safety requirements for electrical
equipment for measurement, control, and laboratory use, Part 1.
ELECTROMAGNETIC COMPATIBILITY
Notes:
1. This device was designed for installation in an enclosure. To avoid
electrostatic discharge, precautions should be taken when the device is
mounted outside an enclosure. When working in an enclosure (ex. making
adjustments, setting switches, etc.) typical anti-static precautions should
be observed before touching the unit.
2. For operation without loss of performance:
Unit is mounted on a rail in a metal enclosure (Buckeye SM7013-0 or
equivalent) and I/O cables are routed in metal conduit connected to
earth ground.
Refer to the EMC Installation Guidelines section of this bulletin for
additional information.
15. ENVIRONMENTAL CONDITIONS:
Operating Temperature: 0 to 50°C
Storage Temperature: -40 to 80°C
Operating and Storage Humidity: 85% max. (non-condensing) from 0°C to
50°C.
Altitude: Up to 2000 meters
16. CONSTRUCTION: Case body is black, high impact plastic. Installation
Category II, Pollution Degree 2
17. WEIGHT: 6 oz. (0.17 Kg)
Level 3; 8 Kv air
Power frequency magnetic fields
Immunity to EN 50082-2
EN 61000-4-8 Level 4; 30 A/m
Electrostatic discharge EN 61000-4-2 Level 2; 4 Kv contact1
Electromagnetic RF fields EN 61000-4-3 Level 3; 10 V/m2
80 MHz - 1 GHz
Fast transients (burst) EN 61000-4-4 Level 4; 2 Kv I/O
Level 3; 2 Kv power
RF conducted interference EN 61000-4-6 Level 3; 10 V/rms
150 KHz - 80 MHz
Emissions to EN 50081-2
RF interference EN 55011 Enclosure class A
Power mains class A

723
H
1-717-767-6511
OVERVIEW
The Model IFMR continuously monitors the input signal and controls an
output relay based on the frequency of the input signal, the chosen Operation
Mode (Underspeed or Overspeed), and the Trip and Release points the user has
selected. The green Input LED blinks at the rate of the input frequency. At about
100 Hz, the Input LED will appear to be solid on. At very low frequencies, the
Input LED blinks slowly and may also appear to be solid on. A loss of signal
may also cause the Input LED to remain on, depending on the DIP switch set-
up. In this case, the red Relay LED also turns on. The IFMR indicates the status
of the relay with the Relay LED (Red). Whenever the relay is in the Trip state,
the IFMR turns ON the Relay LED. In the Release state, the Relay LED is OFF.
For Overspeed detection, when the input frequency (averaged over the
Minimum Response Time) exceeds the Trip point, the IFMR trips the relay.
With the relay in the Trip condition, the input frequency must fall below the
Release point for the relay to release.
For Underspeed detection, the relay trips when the input frequency (averaged
over the Minimum Response Time) falls below the Trip point. The relay
releases only after the input frequency has exceeded the Release point. Two of
the Underspeed operating modes allow the machine or system that supplies the
input signal to reach normal operating speed before the IFMR responds to an
Underspeed condition. For Zero Speed applications, bear in mind that Zero
Speed detection and Underspeed detection are identical.
The Minimum Response Time parameter sets the minimum update time of
the output. The actual response time is the Minimum Response Time plus up to
one full period of the input signal. The IFMR counts the negative edges
occurring during the update time period, and computes the average frequency
value for that time. This action filters out any high frequency jitter that may be
present in the input signal. The longer the Minimum Response Time, the more
filtering occurs.
The Offset value is added to the Trip Frequency to determine the Trip Point
for Overspeed operation. For Underspeed operation the Trip point becomes the
Trip Frequency minus the Offset value.
If No Hysteresis has been selected, the Trip and Release points are identical,
which can lead to cycling or “chattering” of the relay at input frequencies
hovering around the Trip point. If Hysteresis is selected, the Release point is set
to the Trip point (including Offset) minus the Hysteresis value for Overspeed
detection. For Underspeed detection, the Release point is set to the Trip point
(including Offset) plus the Hysteresis value.
Two input pins (Alarm Override and Alarm Reset) are provided for the
optional connection of push-buttons. The Alarm Override pin causes the IFMR
to unconditionally Release the relay, regardless of the input frequency, or the
state of the relay, when pulled to common. When the Alarm Override pin is
released from common, the operation of the IFMR returns to normal, and the
status of the relay is updated based on the input frequency.
The Alarm Reset pin is only active when the IFMR is in one of the Latch
operation modes. With the Latch function selected, the relay “latches” into the
Trip state whenever a Trip condition is detected. The relay remains latched until
the Alarm Reset pin is pulled to common while the input frequency is in the
Release region. The Alarm Reset pin is ignored while the input frequency is in
the Trip region.
EMC INSTALLATION GUIDELINES
Although this unit is designed with a high degree of immunity to
ElectroMagnetic Interference (EMI), proper installation and wiring methods must
be followed to ensure compatibility in each application. The type of the electrical
noise, source or coupling method into the unit may be different for various
installations. The unit becomes more immune to EMI with fewer I/O connections.
Cable length, routing, and shield termination are very important and can mean the
difference between a successful installation or a troublesome installation.
Listed below are some EMC guidelines for successful installation in an
industrial environment.
1. Use shielded (screened) cables for all Signal and Control inputs. The shield
(screen) pigtail connection should be made as short as possible. The
connection point for the shield depends somewhat upon the application.
Listed below are the recommended methods of connecting the shield, in
order of their effectiveness.
a. Connect the shield only at the rail where the unit is mounted to earth
ground (protective earth).
b. Connect the shield to earth ground at both ends of the cable, usually when
the noise source frequency is above 1 MHz.
c. Connect the shield to common of the unit and leave the other end of the
shield unconnected and insulated from earth ground.
2. Never run Signal or Control cables in the same conduit or raceway with AC
power lines, conductors feeding motors, solenoids, SCR controls, and
heaters, etc. The cables should be run in metal conduit that is properly
grounded. This is especially useful in applications where cable runs are long
and portable two-way radios are used in close proximity or if the installation
is near a commercial radio transmitter.
3. Signal or Control cables within an enclosure should be routed as far away as
possible from contactors, control relays, transformers, and other noisy
components.
4. In very electrically noisy environments, the use of external EMI suppression
devices, such as ferrite suppression cores, is effective. Install them on Signal
and Control cables as close to the unit as possible. Loop the cable through the
core several times or use multiple cores on each cable for additional protection.
Install line filters on the power input cable to the unit to suppress power line
interference. Install them near the power entry point of the enclosure. The
following EMI suppression devices (or equivalent) are recommended:
Ferrite Suppression Cores for signal and control cables:
Fair-Rite # 0443167251 (RLC #FCOR0000)
TDK # ZCAT3035-1330A
Steward #28B2029-0A0
Line Filters for input power cables:
Schaffner # FN610-1/07 (RLC #LFIL0000)
Schaffner # FN670-1.8/07
Corcom #1VR3
Note: Reference manufacturer’s instructions when installing a line filter.
5. Long cable runs are more susceptible to EMI pickup than short cable runs.
Therefore, keep cable runs as short as possible.
WIRING CONNECTIONS
All conductors should meet voltage and current ratings for each terminal.
Also cabling should conform to appropriate standards of good installation, local
codes and regulations. It is recommended that power supplied to the unit (AC
or DC) be protected by a fuse or circuit breaker.
POWER AND OUTPUT CONNECTIONS
AC Power
Primary power is connected to terminals 10 and 12 (labeled AC). For best
results, the AC Power should be relatively “clean” and within the specified
variation limits. Drawing power from heavily loaded circuits or from circuits
that also power loads that cycle on and off, should be avoided.
DC Power
The DC power is connected to
Terminals 10 and 12. The DC plus (+)
is connected to Terminal 10 and the
minus (-) is connected to Terminal 12.
It is recommended that separate
supplies be used for sensor power and
unit power. Using the same supply for
both will negate isolation between
input and power.
Output Wiring
Terminals 1, 2, and 3 are used to
connect to the relay output. Terminal 1
is the normally open contact. Terminal
3 is the normally closed contact, and
Terminal 2 is the output relay common.

724
H
www.redlion.net
CONNECTIONS & CONFIGURATION SWITCH SET-UP FOR VARIOUS SENSOR OUTPUTS
Note: Separate power supplies must be used for sensor power and input power to maintain the isolation breakdown voltage specification. If isolation between power
and input is not needed, then a single supply can be used for both unit and sensor power.
The Model IFMR Speed Switch uses a comparator amplifier connected as a
Schmidt trigger circuit to convert the input wave form into the pulse form
required for proper circuit operation. Three set-up switches are used to configure
the input circuit to accept signals from a wide variety of sources, as follows:
S1 - ON: Connects a 1 KΩpull-down resistor for sensors with sourcing outputs.
(Maximum sensor output current is 24 mA @ 24 VDC output.)
S2 - ON: For logic level signals, sets the input bias levels to VIL = 2.5 V,
VIH = 3.0 V.
OFF: For increased sensitivity when used with magnetic pickups, sets the
input bias levels to VIL = 0.25 V, VIH = 0.75 V.
S3 - ON: Connects a 3.9 KΩpull-up resistor for sensors with current sinking
output. (Max. sensor current = 3 mA.)
INPUT CIRCUITS, SENSOR CONNECTIONS AND CONFIGURATION SWITCH SET-UP
CONFIGURING THE IFMR
Upon entry to a set-up parameter, the Input LED blinks the current numerical value of a setting at a 1 Hz rate. A setting
of “1” is indicated by one blink (½ sec on, ½ sec off), through a setting of “9”, which is indicated by nine blinks. A setting
of “0” is indicated by a single short flash (40 msec on, 1 sec off). After the entire value is indicated, the IFMR pauses two
seconds and repeats the value.
During entry of a new value, if the Mode switch (S4) or any of the CFG DIP switch positions are changed before the push
button is pressed, the IFMR aborts the entry process and retains the previous setting.
To begin set-up, place DIP switch 4 to the on (up) position. DIP switches 5, 6, and 7 access unit configuration settings.
Note: To return to normal operation,
place DIP switch 4 in the down
(RUN) position.
( ) Indicates Configuration Section
DIP SWITCH DESCRIPTION SECTION
Operating Mode (1.0)
Set Trip Frequency Using an Input Signal or Frequency Generator (2.0)
Set Trip Frequency Using the Rotary Switch (3.0)
Set Minimum Response Time (4.0)
Set Relay Trip Point (5.0)
Set Relay Release Point (6.0)
*Check sensor power requirements before
wiring.
*Check sensor power requirements before
wiring.
*Check sensor power requirements before
wiring.
*Check sensor power requirements before
wiring.
*Check sensor power requirements before
wiring.
MAGNETIC PICKUPS
RECOMMENDED RULES FOR MAGNETIC PICKUP CONNECTIONS
1. Connect the shield to the common Terminal “9” at the input of the IFMR. DO NOT
connect the shield at the pickup end. Leave the shield “open” at the pickup and insulate
the exposed shield to prevent electrical contact with the frame or case. (Shielded cable,
supplied on some RLC magnetic pickups, has open shield on pickup end.)
2-WIRE PROXIMITY SENSORS
AC VERSION DC VERSION
OLDER STYLE RLC SENSORS WITH -EF OUTPUT
AC VERSION DC VERSION
INPUT FROM CMOS OR TTL
SENSORS WITH CURRENT SINK OUTPUT (NPN O.C.)
AC VERSION DC VERSION
SENSORS WITH CURRENT SOURCE OUTPUT (PNP O.C.)
AC VERSION DC VERSION
SWITCH CONTACT INPUT
AC VERSION DC VERSION

1.1 Place DIP switch 4 to the ON (up) position and DIP switches 5, 6, and 7 as shown.
1.2 Green input LED blinks the setting corresponding to the Operating Mode shown below, pauses
and repeats the value.
Setting Operating Mode
1 OVERSPEED trip, automatic Release upon return to normal
2 OVERSPEED latched trip, Release only after ALM Reset pulled to Common
3 UNDERSPEED trip, automatic Release upon return to normal
4 UNDERSPEED trip, start-up condition*ignored, automatic Release upon return to normal
5 UNDERSPEED latched trip, Release only after ALM Reset pulled to Common
6 UNDERSPEED latched trip, start-up condition*ignored, Release only after ALM Reset
pulled to Common
*Refers to initial application of power to the IFMR, not the input frequency.
If existing operating mode setting is your desired requirement, this section is complete*.
Otherwise, continue with Step 1.3.
1.3 Press the push-button. The Green input LED blinks rapidly to indicate the Operating mode
setting is now accessed.
1.4 Turn the rotary switch to the selected numerical value for output desired (see the list in Step 1.2).
1.5 Press the push-button. The Green input LED blinks the value entered, pauses, and repeats the
new operation setting.
If the new Operating mode setting is acceptable, this section is complete*.
If the new Operating mode setting is not the desired setting, repeat Steps 1.3, 1.4, and 1.5.
If Red output LED blinks, the rotary switch numerical value is invalid. Repeat Steps 1.4 and 1.5.
*Section complete; place DIP switch 4 to the down position for normal operation, or change DIP
switches 5, 6, and 7 for the next Configuration Section.
2.1 Place DIP switch 4 to the ON position and DIP switches 5, 6, and 7 as shown.
2.2 Green input LED blinks the existing Trip Frequency setting as shown in the examples below. Six
full digits of numerical information blink with a 2 sec. pause between digits and a 4 sec. pause
at the end, before repeating. The first five digits are the existing Trip Frequency magnitude. The
sixth digit is the frequency resolution (the number of digits to the right of the decimal point).
If existing Trip Frequency setting is your desired requirement, this section is complete*.
Otherwise, continue with Step 2.3.
2.3 Apply the desired Trip Frequency to the signal input pin.
2.4 Press the push-button. The Green input LED blinks rapidly. The acquisition process takes two
seconds plus one period of the input signal.
If the new Trip Frequency setting is valid, the Green input LED turns on solid. Continue to
Step 2.5.
If Red relay LED blinks, the new Trip Frequency is invalid, outside the acceptable 0.1 Hz to 25
KHz range. Repeat Steps 2.3 and 2.4.
2.5 Press the push-button. The Green input LED blinks the new Trip Frequency setting. This section
is complete*.
To verify Trip Frequency setting, see Step 2.2.
*Section complete; place DIP switch 4 to the down position for normal operation, or change DIP
switches 5, 6, and 7 for the next Configuration Section.
725
H
1-717-767-6511
1.0 Operating Mode
2.0 On-Line Trip Frequency Setting Using Actual Input Signal or Frequency Generator
Step 1.3
Step 1.2
Step 1.4
Step 1.1
Step 2.1
RELAY INDICATION
Overspeed: The Relay LED (red) turns on to indicate the input signal
has exceeded the trip frequency.
Underspeed: The Relay LED (red) turns on to indicate the input
signal is below the trip frequency setting.
Invalid Entry during Set-up: The Input LED (green) and the Relay
LED (red) alternately blink until a valid entry is made.
FACTORY SETTINGS
Setting Parameter
Operating Mode 1 Low Speed Operation, Trip on Overspeed
Trip Frequency 10000 10 KHz
Minimum Response 0 5 msec
Trip Point Offset 0 None
Trip Point Hysteresis 1 0.25%
Setting ‘2’
Selected
Factory Setting Example Additional Example
1 blink 1 2 blinks 2
2 sec pause 2 sec pause
single flash 0 5 blinks 5
2 sec pause Frequency 2 sec pause Frequency
single flash 0 setting single flash 0 setting
2 sec pause 2 sec pause
single flash 0 5 blinks 5
2 sec pause 2 sec pause
single flash 0 single flash 0
2 sec pause 2 sec pause
single flash 0 Resolution 2 blinks 2 Resolution
4 sec pause 4 sec pause
Frequency Resolution Frequency Resolution
1 0000 0 25050 2
Result: 10,000 Hz Result: 250.50 Hz
Step 2.2
PREFERRED
PREFERRED
METHOD
METHOD
Step 2.4

726
H
www.redlion.net
3.1 Place DIP switch 4 to the ON position and DIP switches 5, 6, and 7 as shown.
3.2 The Green input LED blinks the existing Trip Frequency setting, pauses and repeats. Six full
digits of numerical information blink with a 2 sec. pause between digits and a 4 sec. pause at
the end, before repeating. The first five digits are the existing Trip Frequency magnitude. The
sixth digit is the frequency resolution (the number of digits to the right of the decimal point).
If the existing Trip Frequency setting is your desired requirement, this section is complete*.
Otherwise, continue with Step 3.3.
3.3 Determine the Trip Frequency and record in the space provided below.
Trip Frequency Resolution
First 5 of 6 digits 6th digit
Example: 95.5 Hz Example: 15,500 Hz
95
•500 3 15500
•0
095
•50 2
0 095
•51
3.4 Press the push-button. The Green input LED blinks rapidly. Trip Frequency setting is now
accessed.
3.5 Turn the rotary switch to the first selected numerical value. Press the push-button. The Green
input LED continues to blink rapidly. First of six numerical digits is entered.
3.6 Turn the rotary switch to the second selected numerical value. Press the push-button. The
Green input LED continues to blink rapidly. Second of six numerical digits is entered.
3.7 Repeat Step 3.6 three more times then go to Step 3.8. This enters a total of five of the required
six numerical digits.
3.8 Turn the rotary switch to the selected numerical value for resolution requirement. Press the
push-button. The Green input LED blinks the new Trip Frequency setting (as described in Step
2.2), pauses, and repeats the value.
If the new Trip Frequency setting is acceptable, this section is complete*.
If the new Trip Frequency setting is not the desired setting, repeat Steps 3.4, through 3.8.
If the Red relay LED blinks, the numerical value entered is invalid. Repeat Steps 3.3
through 3.8.
*Section complete; place DIP switch 4 to the down position for normal operation, or change DIP
switches 5, 6, and 7 for the next Configuration Section.
4.1 Place DIP switch 4 to the ON position and DIP switches 5, 6, and 7 as shown.
4.2 The Green input LED blinks the existing Minimum Response Time setting (see following list),
pauses and repeats.
Setting Time Setting Time
0 5 msec 5 200 msec
1 10 msec 6 500 msec
2 20 msec 7 1 sec
3 50 msec 8 5 sec (not valid for trip frequency > 3906 Hz)
4 100 msec 9 10 sec (not valid for trip frequency > 3906 Hz)
Note: Minimum Response Times do not include the relay’s operate response time of 5 msec., or
the release response time of 3 msec.
4.3 Press the push-button. The Green input LED blinks rapidly. Minimum Response Time setting
is now accessed.
4.4 Turn the rotary switch to the selected numerical value for Minimum Response Time desired
(see list in Step 4.2).
4.5 Press the push-button. The Green input LED blinks the value entered, pauses, and repeats the
new setting.
If the new Minimum Response Time setting is acceptable, this section is complete*.
If the new Minimum Response Time setting is not the desired setting, repeat Steps 4.3, 4.4,
and 4.5.
If the Red relay LED blinks, the rotary switch numerical value is invalid. Repeat Steps 4.4 and
4.5.
*Section complete; place DIP switch 4 to the down position for normal operation, or change DIP
switches 5, 6, and 7 for the next Configuration Section.
3.0 Set Trip Frequency Using The Rotary Switch
4.0 Set Minimum Response Time
Step 3.2
Step 3.1
Step 4.2
Step 4.1
Setting ‘2’
Selected
Setting ‘2’
Selected
AALLTTEERRNNAATTIIVVEE
MMEETTHHOODD
IIFF
IINNPPUUTT
SSIIGGNNAALL IISS NNOOTT
AAVVAAIILLAABBLLEE
Step 3.4
Step 4.3
Step 3.5
Step 4.4

727
H
1-717-767-6511
For Overspeed operation, the Relay Trip point is internally set to the Trip Frequency plus the Offset
value. For Underspeed operation, the Relay Trip point is internally set to the Trip Frequency minus the
Offset value. The Offset value is equal to the Trip Frequency multiplied by the selected Offset
percentage.
Example: The Offset value is calculated as shown below.
Trip Frequency = 250 Hz
Rotary Switch Setting = 4 (2.00%)
Offset Value = 250 Hz x 2.00% (0.02) = 5 Hz
Trip Point:
OVERSPEED = 250 + 5 = 255 Hz
UNDERSPEED = 250 - 5 = 245 Hz
5.1 Place DIP switch 4 to the ON position and DIP switches 5, 6, and 7 as shown.
5.2 The Green input LED blinks the existing setting (see following list), pauses and repeats.
Setting Percentage
0 0.00% (NO Offset)
1 0.25% (0.0025)
2 0.50% (0.0050)
3 1.00% (0.0100)
4 2.00% (0.0200)
5 5.00% (0.0500)
6 10.00% (0.1000)
7 20.00% (0.2000)
8 25.00% (0.2500)
9 33.33% (0.3333)
5.3 Press the push-button. The Green input LED blinks rapidly. Trip Point Offset setting is now
accessed.
5.4 Turn the rotary switch to the selected numerical value for Trip Point Offset desired (see list in Step
5.2).
5.5 Press the push-button. The Green input LED blinks the value entered, pauses, and repeats the new
setting.
If the new Trip Point Offset setting is acceptable, this section is complete*.
If the new Trip Point Offset setting is not the desired setting, repeat Steps 5.3, 5.4, and 5.5.
If the Red relay LED blinks, the rotary switch numerical value is invalid. Repeat Steps 5.4 and 5.5.
*Section complete; place DIP switch 4 to the down position for normal operation, or change DIP
switches 5, 6, and 7 for the next Configuration Section.
6.0 Set Relay Release Point (Hysteresis)
5.0 Set Relay Trip Point (Offset)
For Overspeed operation, the Relay Release point is set to the Relay Trip point minus the Hysteresis
value. For Underspeed operation, the Relay Release point is set to the Relay Trip point plus the
Hysteresis value. The hysteresis value is calculated by multiplying the hysteresis percentage by the
current trip frequency. If No Hysteresis (setting = 0) is selected, the Relay Trip and Release points are
identical, which can lead to chattering or cycling of the relay at input frequencies hovering around the
Relay Trip point.
Example: Using the Trip Frequency and Offset value as shown in the example above, the hysteresis
value is calculated as shown below.
Rotary Switch Setting = 3 (1.00%)
Hysteresis Value = 250 Hz x 1.00% (0.01) = 2.5 Hz
Release Point:
OVERSPEED = 250 + 5 - 2.5 = 252.5 Hz
UNDERSPEED = 250 - 5 + 2.5 = 247.5 Hz
6.1 Place DIP switch 4 to the ON position and DIP switches 5, 6, and 7 as shown.
6.2 The Green input LED blinks the existing setting (see following list), pauses, and repeats.
Setting Percentage
0 0.00% (NO Hysteresis)
1 0.25% (0.0025)
2 0.50% (0.0050)
3 1.00% (0.0100)
4 2.00% (0.0200)
5 5.00% (0.0500)
6 10.00% (0.1000)
7 20.00% (0.2000)
8 25.00% (0.2500)
9 33.33% (0.3333)
6.3 Press the push-button. The Green input LED blinks rapidly. Trip Point Hysteresis setting is now
accessed.
6.4 Turn the rotary switch to the selected numerical value for Hysteresis desired (see list in Step 6.2).
6.5 Press the push-button. The Green input LED blinks the value entered, pauses and repeats the new
setting.
If the new Trip Point Hysteresis setting is acceptable, this section is complete*.
If the new Trip Point Hysteresis setting is not the desired setting, repeat Steps 6.3, 6.4, and 6.5.
If the Red relay LED blinks, the rotary switch numerical value is invalid. Repeat Steps 6.4 and 6.5.
*Section complete; place DIP switch 4 to the down position for normal operation, or change DIP
switches 5, 6, and 7 for the next Configuration Section.
Step 5.2
Step 5.1
Step 6.2
Step 6.1
Setting ‘9’
Selected
Setting ‘9’
Selected
Step 5.3
Step 6.3
Step 5.4
Step 6.4

728
H
www.redlion.net
INSTALLATION
The unit is equipped with a universal mounting foot for attachment to
standard DIN style mounting rails, including G profile rail according to
EN50035 - G32 , and top hat (T) profile rail according to EN50022 - 35 x
7.5 and 35 x 15. The unit should be installed in a location that does not
exceed the maximum operating temperature and provides good air
circulation. Placing the unit near devices that generate excessive heat
should be avoided.
G Rail Installation
To install the IFMR on a “G”
style DIN rail, angle the module
so that the upper groove of the
“foot” catches under the lip of the
top rail. Push the module toward
the rail until it snaps into place. To
remove a module from the rail,
push up on the bottom of the
module while pulling out away
from the rail.
T Rail Installation
To install the IFMR on a
“T” style rail, angle the
module so that the top groove
of the “foot” is located over
the lip of the top rail. Push the
module toward the rail until it
snaps into place. To remove a
module from the rail, insert a
screwdriver into the slot on the
bottom of the “foot”, and pry
upwards on the module until it
releases from the rail.
APPLICATION 1
An APLR is connected to an LMPC (logic magnetic pickup) that is
sensing the speed of a 60 tooth gear attached to a shaft. The shaft speed
should not exceed 2000 RPM.
The IFMR is placed in parallel with the APLR to activate an alarm when
an overspeed condition is detected, and to turn off the alarm when the speed
returns to normal. The Mode of Operation is set for Mode #1 (overspeed
trip, automatic release upon return to normal).
To set the value of the alarm, either apply the maximum input signal as
described in Section 2.0 or determine the Trip Frequency using the
following formula:
Trip Freq. = units/measure x pulses/unit
seconds/measure
Trip Freq. = 2000 RPM x 60 PPR = 2000 Hz
60 sec
Set the Trip Frequency with the rotary switch for 2000 Hz.
With Trip point Offset set at 0.00% (No Offset) and Trip Point Hysteresis
set at 0.25%; activation of the relay occurs at 2000 Hz, and release occurs
at 1995 Hz.
APPLICATION 2
The IFMR can be used in a speed monitoring system to detect when the
system drops below setpoint.
The IFMR is wired to a PSAC (inductive proximity sensor) that is sensing
a key way on the shaft of a motor. The motor is turning at 1750 RPM. When
the speed of the motor drops below 1250 RPM, the IFMR latches the output
until the user resets the output with an external push button.
The mode of operation of the IFMR is set for 5 (UNDERSPEED Latched
trip, release only after Alarm Reset pulled to common). Determine the Trip
Frequency using the following formula:
Trip Freq. = RPM x PPR
60
Trip Freq. = 1250 RPM x 1 PPR = 20.83 Hz.
60 sec.
Set the Trip Frequency with the rotary switch for 20.83 Hz.
TROUBLESHOOTING
For further technical assistance, contact technical support at the appropriate
company numbers listed.

729
H
1-717-767-6511
zVOLTAGE/CURRENT TO FREQUENCY CONVERTER
z3-WAY ISOLATION OF INPUT / OUTPUT SIGNALS
zUNIVERSAL CONVERSION MODULE - INPUTS AND OUTPUTS
SELECTED VIA DIP SWITCH SETTINGS
zULTRA SLIM DESIGN – ONLY 0.244" WIDE
z19 to 30 VDC POWER
MODEL AFCM - ANALOG TO FREQUENCY CONVERTER MODULE
DESCRIPTION
The configurable analog to frequency converter is used to convert analog
standard signals to frequency signals or pulse width modulated (PWM) signals.
Input signal ranges are 0 - 20 mA, 4 - 20 mA, 0 - 10 mA, 2 - 10 mA,
0 - 10 V, 2 - 10 V, 0 - 5 V, or 1 - 5 V.
The DIP switches are accessible on the side of the housing and allow the
following parameters to be configured:
– Input signal
– Output values
– Output type (frequency or PWM)
– Filter type (for smoothing interferences on the input signal)
– Input over/under range fault detection
SAFETY SUMMARY
The device may only be installed and put into operation by qualified personnel.
The corresponding national regulations must be observed.
SPECIFICATIONS
INPUT
1. INPUT SIGNAL RANGE (Configurable): 0 - 20 mA, 4 - 20 mA,
0 - 10 mA, 2 - 10 mA, 0 - 10 V, 2 - 10 V, 0 - 5 V, 1 - 5 V
2. MAX. INPUT SIGNAL:
Current inputs: 100 mA
Voltage inputs: 30 VDC
3. INPUT RESISTANCE:
Current inputs: 50 Ω, approx.
Voltage inputs: 110 KΩ, approx.
OUTPUT
1. OUTPUT SIGNAL RANGE (Configurable):
Frequencies: 0 - 10 kHz, 0 - 5 kHz, 0 – 2.5 kHz, 0 - 1 kHz, 0 - 500 Hz 0 -
250 Hz, 0 - 100 Hz, 0 - 50 Hz
PWM: 7.8 kHz, 3.9 kHz, 1.9 kHz, 977 Hz, 488 Hz, 244 Hz, 122 Hz, 61 Hz
2. MIN. LOAD:
Frequency: 6 KΩ
PWM: 2 KΩ
3. MAX. LOAD CURRENT: 20 mA
4. OUTPUT: NPN open collector transistor
5. MAX. SWITCHING VOLTAGE: 30 V
6. OVER-RANGE/UNDER-RANGE FAULT DETECTION: Configurable
7. OUTPUT PROTECTION: Short circuit and polarity protection
GENERAL DATA
1. SUPPLY VOLTAGE: 19.2 - 30 VDC
2. NOMINAL VOLTAGE: 24 VDC
3. CURRENT CONSUMPTION: < 10 mA
4. POWER CONSUMPTION: < 200 mW
5. TRANSMISSION ERROR: < 0.1%
6. TEMPERATURE COEFFICIENT (MAX.): < 0.02%/K
7. STEP RESPONSE:
0% to 99%: < 15 msec + (1/T)
With Largest Filter: < 1 sec + (1/T)
8. TEST VOLTAGE (INPUT / OUTPUT / SUPPLY): 1.5 kV, 50 Hz, 1 min
9. AMBIENT TEMPERATURE RANGE:
Operation: -20 t +65°C (-4 to 148°F)
Storage: -40 to +85°C (-4 to 183°F)
10. FAULT DETECTION: Red LED under clear cover top
DIMENSIONS In inches (mm)
ORDERING INFORMATION
Analog to Frequency Converter Module AFCM
DESCRIPTIONMODEL NO.
AFCM0000
PART NUMBER
CAUTION: Risk of Danger.
Read complete instructions prior to
installationand operation of the unit.
CAUTION: Risk of electric shock.
UL Recognized Component,
File # E257265

730
H
www.redlion.net
11. CERTIFICATIONS AND COMPLIANCES:
1Criterion B: Temporary impairment to operational behavior that is corrected
by the device itself.
2Criterion A: Normal operating behavior within the defined limits.
3Class A: Area of application industry.
12. CONNECTIONS: Wire Gauge: 24-12 AWG, Stripping length: 0.47" (12 mm)
13. CONSTRUCTION: Polybutylenterephthalate PBT, black
14. MOUNTING: Standard DIN top hat (T) profile rail according to EN50022
- 35x7.5
15. WEIGHT: 2 oz. (54 g)
WIRING CONNECTIONS
Primary power is
connected to terminals
7 or 3 (19.2 – 30 VDC)
and 8 or 4 (GND 3).
For best results, the
Power should be
relatively “clean” and
within the specified
variation limits.
Drawing power from
heavily loaded circuits
or from circuits that
also power loads that
cycle on and off,
should be avoided.
The input signal is
connected to terminal 1
(In UI) and 2 (GND 1).
Connections for the
output signal is on
terminals 5 (Out f) and
6 (GND 2).
CONFIGURATION
DIP Switch S1
Using DIP switch S1, you can set the input values, and the values for Moving
Average Filter and Over sampling.
The moving average filter can group
values (1, 2, 4, 6) using moving window
averaging to form a new measured value. In
moving window averaging, the average of a
fixed number of measured values is taken,
whereby the oldest value is always dropped
and the most recent added.
In order to smooth the measured values, an
average can be formed from several
measured values (1, 10, 50, 100). This
process is called Over sampling. In
oversampling, the average is updated every
time the selected number of values is
reached.
DIP Switch S2
Using DIP switch S2, you can set the output values, the output type and fault
detection.
Output Signals
Frequency Output:
Variable frequency/period duration T
PWM Output
(Pulse Wide Modulation):
Variable pulse to pause ratio/fixed
period duration T
Change can only be read by PWM input
meters.
Fault Detection
INSTALLATION
The unit is equipped with a universal mounting foot for attachment to
standard DIN style top hat (T) profile rail according to EN50022 - 35 x 7.5 and
35 x 15. The unit should be installed in a location that does not exceed the
maximum operating temperature and provides good air circulation. Placing the
unit near devices that generate excessive heat should be avoided.
T Rail Installation
To install the AFCM on a “T”
style rail, angle the module so that
the top groove of the “foot” is
located over the lip of the top rail.
Push the module toward the rail
until it snaps into place. To
remove a module from the rail,
insert a screwdriver into the slot
on the bottom of the “foot”, and
pry upwards on the module until
it releases from the rail.
1 2 3 4 ANALOG IN
0 – 10V
ON 1 – 5V
ON 0 – 5V
ON 2 – 10V
ON ON 0 – 20 mA
ON ON ON 4 – 20 mA
ON ON ON 0 – 10 mA
ON ON ON ON 2 – 10 mA
5 6 MOVING WINDOW
AVERAGING
1 value
ON 2 values
ON 4 values
ON ON 6 values
1 2 3 4 FREQUENCY
OUTPUT
0 - 10 kHz
ON 0 - 5 kHz
ON 0 – 2.5 kHz
ON ON 0 - 1 kHz
ON 0 - 500 Hz
ON ON 0 - 250 Hz
ON ON 0 - 100 Hz
ON ON ON 0 - 50 Hz
5 6 INPUT OVER RANGE
Freeze at 100% measuring range end value
ON 105% measuring range end value
ON 110% measuring range end value
ON ON
7 8 INPUT UNDER RANGE
Freeze at 100% measuring range start value
ON 105% measuring range end value
ON 110% measuring range end value
ON ON Fault detection OFF (stops at start value)
Conformance With EMC Guideline 89/336/EEC And Low Voltage Directive 73/23/EEC
Immunity to Interference According to EN 61000-6-2
Discharge of static electricity (ESD) EN 61000-4-2 Criterion B1
Electromagnetic HF field EN 61000-4-3 Criterion A2
Fast transients (Burst) EN 61000-4-4 Criterion B1
Surge voltage capacities (Surge) EN 61000-4-5 Criterion B1
Conducted disturbance EN 61000-4-6 Criterion A2
Noise Emission According to EN 61000-6-4
Noise emission of housing EN 55011 Class A3
ON
7 8
1 value
ON 10 values
ON 50 values
ON ON 100 values
OVER SAMPLING
1 2 3 4
ON 7.8 Hz
ON ON 3.9 Hz
ON ON 1.9 Hz
ON ON ON 977 Hz
ON ON 488 Hz
ON ON ON 244 Hz
ON ON ON 122 Hz
ON ON ON ON 61 Hz
PWM
OUTPUT
Fault detection OFF (continues past end value)

731
H
1-717-767-6511
zUNIVERSAL INPUT, PROCESS, mA DC, VDC, TC, 100 (RTD,
POTENTIOMETER, AND LINEAR RESISTANCE
zUNIVERSAL POWER SUPPLY, 21.6 to 253 VAC/ 19.2 to 300 VDC
z3-WAY ISOLATION (POWER/SIGNAL/OUTPUT)
zCHOOSE SETPOINTS AND/OR ANALOG OUTPUT MODELS
zPROGRAMMING/DISPLAY MODULE
zPROGRAMMING AVAILABLE IN SEVEN DIFFERENT
LANGUAGES
GENERAL DESCRIPTION
The IAMS — Universal Signal Conditioners unmatched capability provides
users the ultimate in flexibility. As a signal conditioner, the unit provides
complete isolation and conversion capability to satisfy almost any application.
The Universal Input accepts Process, DC Current, DC Voltage, Thermocouples,
RTDs, Potentiometers, and Linear Resistance signals allowing the module to be
connected to most common sensors. The setpoint model allows dual setpoint
control capability through dual Form A relays. The analog model provides a
retransmitted analog signal. A third model provides both analog and control
capability. The power supply is also universal, accepting 21.6 to 253 VAC/ 19.2
to 300 VDC as its power source. Add the optional programming module and the
unit is easily programmed through menu style programming. The module can
also be used to provide a display of the process variable when it is not being used
for programming.
The IAMS features well over 100 combinations of inputs to outputs
configurations. Input specific terminals allow for the various signals and sensors
to be connected to the unit while the input ranges and resolutions are adjusted in
the input programming loop of the unit. The menu style programming allows the
user quick and easy set-up by using the PGMMOD, programming module. The
module is required to program the IAMS. However, if you are using more than
one IAMS, only one programming module is required. The module can store
programming from one unit and load it to a second unit reducing set-up time for
multiple installations. When the programming module is not being used for
programming, it can indicate the input parameters, just like a panel meter.
The unit’s overall full scale accuracy typically exceeds 0.1 % depending on
the range selection and scaling. The microprocessor based design provides ease
of field scaling and the onboard E2PROM stores scaling values for future recall.
All units come factory precalibrated for all input and output ranges. Factory or
custom field scaling can be selected in the Advanced programming loop. The
IAMS can be factory recalibrated in the field if desired.
The unit’s environmental operating temperature range is -20º C to 60º C. DIN
rail mounting saves time and panel space. The units are equipped with mounting
feet to attach to top hat profile rail according to EN50022 – 35 x 7.5 and 35 x 15.
SAFETY SUMMARY
All safety related regulations, local codes and instructions that appear in the
literature or on equipment must be observed to ensure personal safety and to
prevent damage to either the instrument or equipment connected to it. If
equipment is used in a manner not specified by the manufacturer, the protection
provided by the equipment may be impaired.
MODEL IAMS – INTELLIGENT UNIVERSAL SIGNAL
CONDITIONING MODULE
CAUTION: Risk of Danger
Read complete instructions prior to
installation and operation of the unit.
CAUTION: Risk of electric shock.
FM
APPROVED
C
C
US LISTED
US LISTED
UL
R
IND. CONT. EQ.
51EB
DIMENSIONS In inches (mm)
WARNING
To keep the safety distances, the relay contacts on the devices
must not be connected to both hazardous and non-hazardous
voltages at the same time.
The IAMS devices must be mounted on a DIN rail according to
DIN 46277.
INSTALL-
ATION

732
H
www.redlion.net
Ordering Information . . . . . . . . . . . . . . . . . . 2
General Specifications . . . . . . . . . . . . . . . . . 2
Accessories . . . . . . . . . . . . . . . . . . . . . . . . . 3
Installing the Unit . . . . . . . . . . . . . . . . . . . . . 4
Installing the Programming Module . . . . . . . . 4
Wiring the Unit . . . . . . . . . . . . . . . . . . . . . . . 4
Reviewing the Front Buttons and Display . . . 6
Programming the Unit . . . . . . . . . . . . . . . . . . 6
Programming Overview . . . . . . . . . . . . . . . 11
TABLE OFCONTENTS
GENERAL SPECIFICATIONS
ORDERING INFORMATION
1. DISPLAY: See Display/ Programming Module
2. POWER:
AC Power: 21.6 to 253 VAC, 50/60 Hz
DC Power: 19.2 to 300 VDC,
3. CONSUMPTION: <2.5 W
4. FUSE: 400 mA SB/250 VAC
5. ISOLATION: Between input, supply and outputs - 2.3 kVAC/250 VAC
6. INPUTS:
Current Input:
Programmable Ranges: 0 to 20 and 4 to 20 mA DC
Measurement range: -1 to 25 mA
Input resistance: Nom. 20 Ω+ PTC 50 Ω
Sensor error detection: 4 to 20 loop break, yes
Supply Voltage: 16-25 VDC, 20 mA max (Terminal 43 and 44)
Voltage Input:
Programmable Ranges: 0 to 1, 0.2 to 1, 0 to 5, 1 to 5, 1 to 10, and 2 to 10
VDC
Measurement range: -20 mV to 12 VDC
Input resistance: Nom. 10 MΩ
Thermocouple Inputs:
Thermocouple Type: B, E, J, K, L, N, R, S, T, U, W3, W5, and LR
Cold Junction Compensation: via internally mounted sensor < ±1.0 ºC
Sensor Error Detection: All TC types, yes
Sensor Error Current: When detecting 2 μA, otherwise 0 μA
TYPE MIN. VALUE MAX. VALUE STANDARD
B+400 °C +1820 °C IEC 60584-1
E-100 °C +1000 °C IEC 60584-1
J-100 °C +1200 °C IEC 60584-1
K-180 °C +1372 °C IEC 60584-1
L-200 °C +900 °C DIN 43710
N-180 °C +1300 °C IEC 60584-1
R-50 °C +1760 °C IEC 60584-1
S-50 °C +1760 °C IEC 60584-1
T-200 °C +400 °C IEC 60584-1
U-200 °C +600 °C DIN 43710
W3 0 °C +2300 °C ASTM E988-90
W5 0 °C +2300 °C ASTM E988-90
LR -200 °C +800 °C GOST 3044-84
PGMMOD00
IAMS0011
IAMS0010
IAMS0001
Programming Display Module
Intelligent Universal Signal Cond w/Analog Output and
Dual Setpoints
Intelligent Universal Signal Cond w/Dual Setpoints
Intelligent Universal Signal Cond with Analog Output
IAMS
PART NUMBERDESCRIPTIONMODEL NO.

733
H
1-717-767-6511
RTD, Linear Resistance, Potentiometer Inputs
RTD Types: Pt10, Pt20, Pt50, Pt100, Pt200, Pt250, Pt300, Pt400, Pt500,
Pt1000, Ni50, Ni100, Ni120, and Ni1000
Cable Resistance per wire: RTD, 50 Ωmax.
Sensor Current: RTD, Nom. 0.2 mA
Sensor Error Detection: RTD, yes
Short Circuit Detection: RTD, < 15 Ω
7. STEP RESPONSE TIME: (0 to 90% or 100 to 10%)
Temperature input: ≤1 sec
Current/Voltage input: ≤400 msec
8. ACCURACY: The greater of the general and basic values.
9. CALIBRATION TEMPERATURE: 20 to 28 ºC
10. RELAY OUTPUTS: Dual Form A. Contacts rated at 2 A AC or 1 A DC
Hysteresis: 0.1 to 25 % (1 to 2999 display counts)
On and off delay: 0 to 3600 sec
Sensor Error Detection: Break / Make / Hold
Max. Voltage: 250 Vrms
Max. Current: 2 A AC or 1 ADC
Max. Power: 500 VA
11. ANALOG OUTPUT:
Current Output:
Signal Range (Span): 0 to 20 mA
Programmable Measurement Range: 0 to 20, 4 to 20, 20 to 0, and 20 to 4
mA
Load Resistance: 800 Ωmax.
Output Compliance: 16 VDC max.
Load Stability: = 0.01 % of span, 100 Ωload
Sensor Error Detection: 0 / 3.5 mA/ 23 mA / none
Output Limitation: For 4 to 20 and 20 to 4 mA signals - 3.8 to 20.5 mA
For 0 to 20 and 20 to 0 mA signals - 0 to 20.5 mA
Current Limit: = 28 mA
Voltage Output:
Signal Range: 0 to 10 VDC
Programmable Signal Ranges: 0 to 1, 0.2 to 1, 0 to 10, 0 to 5, 1 to 5, 2 to
10, 1 to 0, 1 to 0.2, 5 to 0, 5 to 1, 10 to 0, and 10 to 2 V
Load: 500 K Ωmin
12. ENVIRONMENTAL CONDITIONS:
Operating Temperature: -20 to +60 ºC
Operating and Storage Humidity: 95% relative humidity (non-condensing)
13. CERTIFICATIONS AND COMPLIANCES:
ELECTROMAGNETIC COMPATIBILITY:
EMC 2004/108/EC Emission and Immunity EN 61326
EMC Immunity Influence <± 0.5% of span
Extended EMC Immunity: NAMUR NE 21,
A criterion, burst <± 1% of span
SAFETY
LVD 2006/95/EC EN 61010-1
Factory Mutual Approved, Report #3034432, FM 3600, 3611, 3810, and
ISA 82.02.01
FM, applicable in: Class I, Div. 2, Group A, B, C, D
Class I, Div. 2, Group IIC
Zone 2
Max. ambient temperature for T5 60°C
UL Listed, File # E324843, UL508, CSA C22.2 No. 14-M95
LISTED by Und. Lab. Inc. to U.S. and Canadian safety standards
Refer to the EMC Installation Guidelines section of this bulletin for
additional information.
14. CONSTRUCTION: IP 50/IP20 Touch Safe, case body is black high impact
plastic. Pollution Degree 1.
15. CONNECTIONS: High compression cage-clamp terminal block. Use
60/75°C copper conductors only.
Wire strip length: 0.3" (7.5 mm)
Wire gage: 26 – 14 AWG stranded wire
Torque: 4.5 inch-lbs (0.5 N-m) max
16. WEIGHT: 5 oz (145 g)
5.6 oz (160 g) with programming module
INPUT TYPE MIN. VALUE MAX. VALUE STANDARD
Pt100 -200 °C +850 °C IEC60751
Ni100 -60 °C +250 °C DIN 43760
Lin. R 0 Ω10000 Ω-
Potentiometer 10 Ω100 kΩ-
GENERAL VALUES
Input Type Absolute Accuracy Temperature Coefficient
All ≤ ±0.1% of span ≤ ±0.1% of span/°C
≤ ±0.2 °C/°C
≤ ±0.01 Ω/°C
≤ ±0.5 °C/°C
≤ ±0.01 Ω/°C
≤ ±2 µV/°C
≤ ±0.01 °C/°C
≤ ±0.4 µA/°C
≤ ±2 °C
≤ ±0.1 Ω
≤ ±1 °C
≤ ±0.1 Ω
≤ ±20 µV
≤ ±0.2 °C
≤ ±4 µA
Potentiometer
Lin. R
Volt
Pt100
mA
Temperature CoefficientBasic AccuracyInput Type
BASIC VALUES
TC Type:
E, J, K, L, N, T, U
TC Type: B, R, S,
W3, W5, LR
ACCESSORY
Display/ Programming Module
The module easily connects to the front of the IAMS and is used to enter or adjust the
programming of the module. For applications that require more than one IAMS, the
same programming module can be used to program multiple units. In fact, it can store
the configuration from one module and download the same configuration to another
module. When the module is not being used for progamming, it can provide a display of
the process data and status.
Display: LCD display with 4 lines; line 1 is 0.2" (5.5 mm) and displays the input signal,
line 2 is 0.13" (3.33 mm) and displays units, line 3 is 0.13" (3.33 mm) and displays
analog output or tag number, line 4 shows communication and relay status
Programming Mode: Three push buttons combined with a simple and easily
understandable menu structure and help text guides you effortlessly through the
configuration steps. The actual configuration/set-up will be explained in the
Programming Section.
Password Protection: Programming access may be blocked by assigning a password.
The password is saved in the IAMS to guard against unautherized modifications to the
configuration. A default password of “2008” allows access to all configuration menus.

734
H
www.redlion.net
1.0 INSTALLING THE UNIT
2.0 INSTALLING THE PROGRAMMING MODULE
The IAMS is designed to mount to a top hat profile DIN rail. The unit should
be installed in a location that does not exceed the maximum operating
temperature and provides good air circulation. Placing the unit near devices that
generate excessive heat should be avoided.
The PGMMOD, Programming/Display Module is designed to connect to the
front of the IAMS. Insert the top of the programming module first, then allow
the bottom to lock into the IAMS.
When programming is complete, leave the programming module in place to
display the process data or press the release tab on the bottom of the
programming module.
WIRING OVERVIEW
Electrical connections are made via screw-clamp terminals located on the
sides of the unit. All conductors should conform to the unit’s voltage and current
ratings. All cabling should conform to appropriate standards of good
installation, local codes, and regulations. It is recommened that power supplied
to the unit (DC or AC) be protected by a fuse or circuit breaker.
When wiring the unit, compare the numbers on the terminal blocks against
those shown in wiring drawings for proper wire position. Insert the wire under
the correct screw-clamp terminal and tighten until the wire is secure. (Pull wire
to verify tightness.)
EMC INSTALLATION GUIDELINES
Although this unit is designed with a high degree of immunity to
ElectroMagnetic Interference (EMI), proper installation and wiring methods
must be followed to ensure compatibility in each application. The type of the
electrical noise, source or coupling method into the unit may be different for
various installations. The unit becomes more immune to EMI with fewer I/O
connections. Cable length, routing, and shield termination are very important
and can mean the difference between a successful installation or troublesome
installation.
Listed below are some EMC guidelines for successful installation in an
industrial environment.
1. Use shielded (screened) cables for all Signal and Control inputs. The shield
(screen) pigtail connection should be made as short as possible. The
connection point for the shield depends somewhat upon the application.
Listed below are the recommended methods of connecting the shield, in order
of their effectiveness.
a. Connect the shield only at the rail where the unit is mounted to earth
ground (protective earth).
b. Connect the shield to earth ground at both ends of the cable, usually when
the noise source frequency is above 1 MHz.
c. Connect the shield to common of the unit and leave the other end of the
shield unconnected and insulated from earth ground.
2. Never run Signal or Control cables in the same conduit or raceway with AC
power lines, conductors feeding motors, solenoids, SCR controls, and
heaters, etc. The cables should be run in metal conduit that is properly
grounded. This is especially useful in applications where cable runs are long
and portable two-way radios are used in close proximity or if the installation
is near a commercial radio transmitter.
3. Signal or Control cables within an enclosure should be routed as far away as
possible from contactors, control relays, transformers, and other noisy
components.
4. In extremely high EMI environments, the use of external EMI suppression
devices, such as ferrite suppression cores, is effective. Install them on Signal
and Control cables as close to the unit as possible. Loop the cable through the
core several times or use multiple cores on each cable for additional
protection. Install line filters on the power input cable to the unit to suppress
power line interference. Install them near the power entry point of the
enclosure. The following EMI suppression devices (or equivalent) are
recommended:
Ferrite Suppression Cores for signal and control cables:
Fair-Rite # 0443167251 (RLC #FCOR0000)
TDK # ZCAT3035-1330A
Steward #28B2029-0A0
Line Filters for input power cables:
Schaffner # FN610-1/07 (RLC #LFIL0000)
Schaffner # FN670-1.8/07
Corcom #1VR3
Note: Reference manufacturer’s instructions when installing a line filter.
5. Long cable runs are more susceptible to EMI pickup than short cable runs.
Therefore, keep cable runs as short as possible.
6. Switching of inductive loads produces high EMI. Use of snubbers across
inductive loads suppresses EMI.
Snubber: RLC#SNUB0000.
3.0 WIRING THE UNIT

735
H
1-717-767-6511
3.1 POWER WIRING
31 32 33
Supply:
3.2 INPUT SIGNAL WIRING
3.3 ANALOG OUTPUT WIRING 3.4 SETPOINT OUTPUT WIRING
+
-
41 42 44
43
41 42 44
43 41 42 44
43
+
-
41 42 44
43
+
-Tx
41 42 44
43
41 42 44
43
41 42 44
43
42 44
43
41 41 42 44
43
+
-
RTD, 3- / 4-wire
Resistance,
3- / 4-wire
Voltage
Potentiometer
Current
2-wire transmitter
eriw-2 ,ecnatsiseR
eriw-2 ,DTR TC
4th
wire
4th
wire
(self-powered)
11 12 14
13
+
-mA
11 12 14
13
+
-V
11 12 14
13
+
-V
Voltage, 1 V Voltage, 10 V
Current
11 12 14
13
Not Used
If not using the analog
option, pins 11 and 12
must be shorted.
21 22 24
23
R1 R2
Relays
Note: For DC power connection,
there is no polarity concerns.

736
H
www.redlion.net
5.0 PROGRAMMING THE UNIT
12
4.0 REVIEWING THE FRONT BUTTONS AND DISPLAY
Display Mode Programming Mode
Line 1 Displays input signal Shows the selected parameter value
Line 2 Displays input units Shows the selected parameter
Line 3 Displays output signal Shows scrolling help text
Line 4 Displays communication and relay status Shows communication and relay status
DISPLAY: Total of four lines.
∧
OK
∨
- increases the numerical value or choose the next selection
- decreases the numerical value or choose the previous selection
PUSH BUTTONS: Configuration of the unit is by the use of the three function keys.
These keys are only active in the programming mode.
- Enters programming mode,
saves the chosen value and proceeds to the next selection
OVERVIEW
PROGRAMMING MENU
PROGRAMMING MODE ENTRY (OK KEY)
A programming module, PGMMOD00 is required to program the unit. The
programing mode is entered by pressing the OK key. If the password protection
is enabled, entry of the password is required to gain access. If the password
protection is disabled, direct access to programming will occur.
MENU ENTRY (ARROW & OK KEYS)
Upon entering the programming mode (set-up), the arrow keys will index
between the programming modules. Select the desired module, press the OK
key enter the module programming.
PARAMETER SELECTION AND ENTRY (ARROW & OK
KEYS)
In each of the Programming Modules are parameters that can be configured
to the desired action for a specific appplication. Each parameter has a list of
selections or a numeric value that can be entered. The parameters are displayed
on line #2 and the selection is on line #1. The arrow keys will move through the
selection list or increase or decrease the numeric values. Once the selection or
numeric value is set to the desired action, press the OK key to enter the data and
move to the next parameter.
PROGRAMMING MODE EXIT (ARROW & OK KEYS)
After completing a programming module loop, the display will return to the
set-up position. At this time additional programming modules can be selected
for programming or the selection of “” can be entered. Entering “” will
exit the Programming Mode, save any changes, and enable the Display Mode.
(If power loss occurs before returning to the display mode, verify recent
parameter changes.)
Note: The unit will return to the Display Mode from any menu after 1
minute without a key press or by pressing and holding the OK key for
2 seconds. In these cases, verify recent parameter changes.
FAST SETPOINT MODE
STEP BY STEP PROGRAMMING INSTRUCTIONS:
FAST SET MENU
- displays setpoint 2 and decreases the shown setpoint value
∨
OK
- displays setpoint 1 and increases the shown setpoint value
∧
- saves the changed setpoint value and returns to the Display Mode
(Holding for 2 seconds returns to the Display Mode without saving.)
Warning: Save all programming
changes before entering
. Do this by
exiting the Program Mode at
the prompt and
then reentering.

737
H
1-717-767-6511
INPUT TYPE ()
5.1 MODULE 1 - SIGNAL INPUT PARAMETERS
PARAMETER MENU - VOLTAGE, CURRENT AND POTENTIOMETER
INPUT TYPE (
)
Select the appropriate Input Type for the application.
Note: Changing the input parameters may affect the setpoint and/or
analog programming.
DECIMAL POINT ()
Select the appropriate decimal point location.
DISPLAY LOW ()
to
Enter the low display value.
Select the appropriate Voltage Range that corresponds to the external
signal. This selection should be high enough to avoid input signal
overload but low enough for the desired input resolution.
Select the appropriate Current Range that corresponds to the external
signal. This selection should be high enough to avoid input signal
overload but low enough for the desired input resolution.
UNIT IDENTIFICATION ()
Select one of the 69 available units as listed below.
WIRE CONNECTION ()
Select the wires the sensor or signals has to connect to the unit.
VOLTAGE RANGE ()
CURRENT RANGE ()
The next five parameters apply to the voltage, current, linear
resistance and potentiometer input types.
If input type is selected for voltage, the following
parameters appear.
INPUT TYPE ()
If input type is selected for current, the following
parameters appear.
INPUT TYPE ()
If input type is selected for linear resistance, the
following parameters appear.
to
MINIMUM RESISTANCE (
)
Enter the low resistance value.
to
MAXIMUM RESISTANCE (
)
Enter the high resistance value.
PARAMETER MENU - TEMPERATURE
DISPLAY HIGH ()
to
Enter the high display value.

738
H
www.redlion.net
or
RELAY 1 CONTROL ()
Select relay 1 operation, normally open or normally closed.
to
RELAY 1 SETPOINT VALUE ()
Enter the relay 1 setpoint value.
or
ACTIVATION DIRECTION ()
Select the direction relay 1 should activate, increasing signal or
decreasing signal.
to
RELAY 1 HYSTERSIS ()
Enter relay 1 hysteresis value.
and
RELAY 1 ERROR ACTIVATION ()
Select relay 1 error mode action.
to
RELAY 1 ON DELAY ()
Enter relay 1 On Delay Time.
to
RELAY 1 OFF DELAY ()
Enter relay 1 Off Delay Time.
UNIT IDENTIFICATION ()
or
Select the appropriate unit for the temperature being displayed.
RELAY 1 FUNCTION (R1.FUNC)
Select how relay 1 is to function. For the relay is controlled by
setpoint one. Select and the relay is controlled by 2 setpoints. For
the relay indicates sensor alarm only. Select and the relay
indicates power status. For the relay is disabled.
RELAY 1 FUNCTION ()
5.2 MODULE 6 - SETPOINT PARAMETERS (REQUIRES SETPOINT OPTION)
PARAMETER MENU - SETPOINT ()
PARAMETER MENU - WINDOW ()
RTD -Select the appropriate RTD sensor.
TYPE:
WIRE CONNECTION:
If the relay function is selected for setpoint, the following
parameters appear.
RELAY 1 FUNCTION ()
If the relay function is selected for window, the following
parameters appear.
, , or
TEMPERATURE SENSOR ()
Select the appropriate temperature sensor.
INPUT TYPE ()
If input type is selected for temperature, the following
parameters appear.
NICKEL SENSORS -Select the appropriate Nickel sensor.
TYPE: ,
WIRE CONNECTION:
THERMOCOUPLE -Select the appropriate Thermocouple sensor.
TYPE:
RELAY ASSIGNMENT ()
or
Select relay assignment to display units or percent of the input.
The remaining parameters in this module apply to temperature
input type only.

739
H
1-717-767-6511
or
RELAY 1 CONTROL ()
Select relay 1 contact to be open inside the window or closed in the
window.
to
SETPOINT LOW VALUE ()
Enter the window’s low value.
to
SETPOINT HIGH VALUE ()
Enter the window’s high value.
5.3 MODULE 8 - ANALOG OUTPUT PARAMETERS
(REQUIRES ANALOG OUTPUT OPTION)
PARAMETER MENU
RELAY 1 FUNCTION ()
ANALOG OUTPUT TYPE ()
If the relay function is selected for error mode, the
following parameters appear.
to
RELAY WINDOW HYSTERSIS ()
Set the window’s hysteresis value.
and
or
RELAY 1 ERROR ACTIVATION ()
Select relay 1 error mode action.
Select either Voltage or Current output.
OUTPUT LOW VALUE () For TEMP only
or
Enter the value for the output Low Value.
OUTPUT HIGH VALUE () For TEMP only
or
Enter the value for the output High Value.
OUTPUT RANGE (O.RANGE)
Select the appropriate range based on the analog output type
selected.
VOLTAGE -Select the appropriate voltage range.
RANGE: , , , , , or
CURRENT -Select the appropriate current range.
RANGE: , , , or
OUTPUT ERROR () For CURR only
, , , or
This parameter is only available if the analog output type is selected for
current. Select the proper Error action, if needed.
RELAY 1 ERROR ACTIVATION ()
Select relay 1 error mode action.
to
RELAY 1 ON DELAY ()
Enter relay 1 On Delay Time.
to
RELAY 1 OFF DELAY ()
Enter relay 1 Off Delay Time.
The POW and OFF selection have no programming capabilites.
For Relay 2, repeat the steps listed for Relay 1.

740
H
www.redlion.net
PARAMETER MENU
5.4 MODULE 9 - ADVANCED PARAMETERS
or
MEMORY SETTING ()
Select save to save unit set-up to the display module or select load to
download saved set-up to the unit.
ADVANCED SETTING ()
Select the advanced setting menu to make the desired change.
ADVANCED SETTING ()
If the advanced setting is selected for memory, the
following parameter appears.
to
LCD CONTRAST ()
Select the desired Display Contrast.
to
LCD BACKLIGHT ADJUSTMENT ()
Select the desired Display Backlight.
to
TAG NUMBER ()
Enter a custom 6 character device tag.
or
LINE 3 SET UP (
)
Select the proper display for Line 3.
to
or
CALIBRATION HIGH ()
Calibrate the input high to the process value.
to
HIGH CALIBRATION POINT VALUE (High Input Signal)
Apply the high input signal, then enter the value for the High Value Point.
or
USE PROCESS CALIBRATION VARIABLES ()
Use Process Calibration Varaibles.
ADVANCED SETTING ()
If the advanced setting is selected for display, the following
parameters appear.
or
INPUT SIMULATION ()
Enable Input Simulation.
to
INPUT SIMULATION VALUE ()
Enter the Input Simulation Value, as selected in the input setup.
RELAY SIMULATION ()
Use the and to toggle between relay 1 and 2.
ADVANCED SETTING ()
If the advanced setting is selected for simulation, the
following parameters appear.
or
PASSWORD PROTECTION ()
Enable Password protection.
to
ENTER NEW PASSWORD () *
Enter New Password.
or
ENABLE FAST SET ()
Enable fast set functionality of the setpoints. .
ADVANCED SETTING ()
If the advanced setting is selected for password, the
following parameters appear.
SELECT PROGRAMMING LANGUAGE ()
Set programming language.
ADVANCED SETTING ()
If the advanced setting is selected for LANGUAGE, the
following parameter appears.
or
CALIBRATION LOW ()
Calibrate the input low to the process value.
ADVANCED SETTING ()
If the advanced setting is selected for calibration (applied
input scaling), the following parameters appear as selected in
the input setup. A temperature example is shown.
LOW CALIBRATION POINT VALUE (Low Input Signal)
Apply the low input signal, then enter the value for the Low Value Point.
* Universal code 2008 will allow access to a locked unit.

741
H
1-717-767-6511
IAMS PROGRAMMING QUICK OVERVIEW
TEMPERATURE
WINDOW

742
H
www.redlion.net
z3-WAY ISOLATION OF ANALOG SIGNALS
zUNIVERSAL CONVERSION MODULE - INPUTS AND OUTPUTS
SELECTED VIA DIP SWITCH SETTINGS
zOVER 100 INPUT AND OUTPUT ANALOG CONVERSION
COMBINATIONS
zCHOOSE LINEAR OR SQUARE ROOT EXTRACTION MODEL
zALL RANGES ARE FACTORY PRECALIBRATED. CUSTOM FIELD
CALIBRATION IS AVAILABLE FOR ALL RANGES WHILE
MAINTAINING THE FACTORY CALIBRATION FOR FUTURE USE
z11 to 36 VDC AND 24 VAC MODULE POWER
GENERAL DESCRIPTION
The IAMA – Universal Signal Conditioning Module Series can isolate and
convert over 100 combinations of analog signal ranges. The IAMA3535
converts and transmits signals linearly proportional to the input, while the
IAMA6262 transmits the scaled square root of the input signal. This allows the
IAMA6262 to provide a signal that is linear to flow rate in applications utilizing
a differential pressure transducer.
DIP switch range selection eliminates the need to order and stock different
modules for each input and output signal range, and allows quick and
convenient setup for over 100 standard signal conversions. By utilizing the
Field mode of calibration, the user can customize the input and output scaling
for odd applications, including reversal of the output relative to the input.
In addition to the conversion capabilities, the IAMA modules feature
optically isolated Input/Output signal circuits and transformer isolated Power to
Input, Power to Output circuits.
The modules’ overall full scale accuracy typically exceed 0.05% depending
upon range selection and scaling. The microprocessor based design provides
ease of field scaling and the onboard E2PROM stores scaling values for future
recall. Both models come factory precalibrated for all input and output ranges.
Factory or custom field scaling can be selected by a simple mode switch change.
The IAMA can be factory recalibrated in the field if desired.
The modules’ environmental operating temperature range is -20°C to +65°C.
DIN rail mounting saves time and panel space. The units are equipped with
universal mounting feet for attachment to standard DIN style rails, including top
hat profile rail according to EN50022 - 35x7.5 and 35 x 15 and G profile rail
according to EN50035-G32.
SAFETY SUMMARY
All safety related regulations, local codes and instructions that appear in the
manual or on equipment must be observed to ensure personal safety and to
prevent damage to either the instrument or equipment connected to it. If
equipment is used in a manner not specified by the manufacturer, the protection
provided by the equipment may be impaired.
ORDERING INFORMATION
SPECIFICATIONS
1. POWER: 11 to 36 VDC, 3 W max. or 24 VAC, ±10%, 50/60 Hz, 4.8 VA max.
2. INPUT/OUTPUT RANGES: See Tables 2 and 3
3. ZERO/SPAN ADJUSTMENTS: Digital (DIP Switch Transition)
4. MAX INPUT SIGNAL:
Current Input: 110 mA DC, 1.1 VDC
Voltage Inputs: Terminal 7- 1 VDC +10%
Terminal 8- 10 VDC +10%
Terminal 9- 100 VDC +10%
5. INPUT RESISTANCE:
Current: 10 Ω
Voltage: > 100 K
6. INPUT PROTECTION: Surge suppressor diodes
7. MAX OUTPUT CURRENT:
Current Output: 22 mA
Voltage Output: 10 mA
8. LOAD RESISTANCE:
Current Output: ≤600 Ω
Voltage Output: ≥1 KΩ
9. OUTPUT COMPLIANCE:
Current: 4 to 20 mA, 0 to 20 mA: 12 V min (≤600 Ω)
0 to 1 mA: 10 V min (≤10 KΩ)
Voltage: 10 VDC across a min. 1 KΩload (10 mA). Factory calibrated for
loads of > 1 MΩ.
10. ISOLATION LEVEL INPUT TO OUTPUT: 1.5 kV @ 50/60 Hz, 1 min
11. STEP RESPONSE: To within 99% of full scale: 300 msec
12. ACCURACY (INCLUDING LINEARITY): Factory: ±0.1% of span
max. for all ranges except 1 mA, 2 mA, and 20 mV. These ranges are
accurate to ±0.2% of span max. All ranges can be field calibrated to 0.1%
of span max.
13. RESOLUTION: 0.01% full scale input, 0.01% full scale output
MODEL IAMA - UNIVERSAL SIGNAL CONDITIONING MODULE
DIMENSIONS In inches (mm)
CAUTION: Risk of Danger.
Read complete instructions prior
to installation and operation of the unit.
CAUTION: Risk of electric shock.
MODEL NO. DESCRIPTION PART NUMBER
IAMA Square Root Universal Signal Conditioning Module
Linear Universal Signal Conditioning Module
IAMA6262
IAMA3535
UL Recognized Component,
File # E179259

743
H
1-717-767-6511
14. ENVIRONMENTAL CONDITIONS:
Operating Temperature Range: -20 to +65 °C
Storage Temperature Range: -40 to +85 °C
Operating and Storage Humidity: 85% max. relative humidity (non-
condensing) from -20 to +65 °C
Temperature Coefficient: ± 0.01%/°C (100 PPM/°C) max.
Altitude: Up to 2000 meters
15. CERTIFICATIONS AND COMPLIANCES:
SAFETY
UL Recognized Component, File #E179259, UL3101-1, CSA C22.2
No. 1010-1
Recognized to U.S. and Canadian requirements under the Component
Recognition Program of Underwriters Laboratories, Inc.
IECEE CB Scheme Test Certificate # US/5141B/UL,
CB Scheme Test Report # 01ME11540-0702001
Issued by Underwriters Laboratories, Inc.
IEC 61010-1, EN 61010-1: Safety requirements for electrical equipment
for measurement, control, and laboratory use, Part 1.
ELECTROMAGNETIC COMPATIBILITY
Notes:
1. Self-recoverable loss of performance during EMI disturbance at 10 V/m:
Analog output signal deviation less than 5% of full scale.
For operation without loss of performance:
Install power line filter, RLC #LFIL0000 or equivalent on DC power
lines at unit.
OR
Install 2 ferrite cores, RLC #FCOR0000 or equivalent, to DC power
lines at unit.
2. Criteria A: No loss of performance within the unit’s specifications.
Refer to EMC Installation Guidelines section of this bulletin for additional
information.
16. CONSTRUCTION: Case body is black high impact plastic
17. CONNECTIONS: 14 AWG max
18. MOUNTING: Standard DIN top hat (T) profile rail according to EN50022
- 35x7.5 and 35 x 15 and G profile rail according to EN50035-G32.
19. WEIGHT: 4.5 oz. (127.57 g)
MODULE ISOLATION
IAMA modules feature “3-Way” Signal Isolation. The 3-Way isolation is a
combination of optical and transformer isolation. The optical isolation provides
common mode voltage (CMV) isolation up to 1.5 kV between the sensor input and
the process signal output. The IAMA’s power is isolated from the sensor signal
input and the process signal output by a DC/DC transformer isolation circuit.
OVERVIEW
The IAMA3535 continuously monitors a voltage or current input and
provides a linearly proportional voltage or current output, while the IAMA6262
transmits the scaled square root of the input signal. This allows the IAMA6262
to provide a signal that is linear to flow rate in applications utilizing a
differential pressure transducer. Both units have two modes of operation known
as Factory and Field modes. Factory mode is used when the default input and
output ranges are suitable. Field mode can be independently selected for both
the input and output, and allows the user to custom calibrate, or scale the signal.
If Factory mode is selected, the IAMAs use factory presets for the selected input
or output range. If Field mode is selected, the IAMAs can be custom scaled
within a selected input or output range. Field mode also allows the IAMA to
reverse its output in relation to its input.
The units are factory precalibrated for minimum and full scale for all input
and output ranges. The factory calibration values are permanently stored in
E2PROM and should not be changed in the field, unless unacceptable error or a
factory checksum error occurs. See Factory Recalibration for details. Field
scaling is achieved by applying minimum and full scale values from a
calibration source and storing the values by a single DIP switch transition. Field
scaling is available for all input and output ranges and the values are
permanently stored in E2PROM until reprogramming occurs.
After field scaling, the IAMAs can be changed between Factory and Field
modes for a particular range, which restores the respective setting. The Factory
and Field E2PROM locations contain the same calibration values when the
IAMA is received from the factory. Therefore, until the IAMA is field scaled,
factory and field modes perform identically. See SCALING PROCEDURE for
detailed instructions on field programming the IAMA.
The units can be scaled to any minimum scale and full scale values within the
extent of the selected range. The closer together the minimum and full scale
values are to each other, the less accurate the signal will be. For example, if the
0 to 1 V input range is selected, and the unit is scaled for 0 to 0.5 V, the signal
has the same resolution as the 0 to 1 V range. Since this resolution will be two
times the percentage of span for 0.5 V, more accuracy can be achieved by using
the 0 to 0.5 V range.
The input may exceed the full scale value for the selected range by 10% of
span, but the IAMA will not update the output beyond 10% over range.
The red and green LED’s indicate the status of the modules during scaling and
normal operation. Table 1, LED Indications, details the LED indications for
various unit conditions.
The IAMA – Signal Conditioning Module Series is designed for use in
industrial environments. Suppressor diodes protect both input and output
circuits from wiring errors and transient high voltage conditions.
INPUTS
The IAMAs accept a full range of process signal inputs and isolate and
convert these signals to common industrial control signals. The input signal
combinations are configured by making specific DIP switch selections on the 10
position DIP switch.
OUTPUTS
As with the input choices, the process signal output of the modules is DIP
switch selectable. A 1 position DIP switch is used to select between the 1 mA/20
mA output ranges. The maximum output current signal is 22 mA with ≤600 Ω
output resistance and the maximum output voltage signal is 11 V with ≥1 KΩ
output resistance.
ZERO AND SPAN
The input zero and span are set by first applying the minimum value then
transitioning S1-2 to store that value. Next, the full scale value is applied and the
DIP switch transition stores the value. The output scaling is performed in a
similar manner but the output is driven to the desired minimum and full scale
values by the calibration source applied to the input. S1-1 is used to store the
minimum and full scale output values.
The span is defined by: span = (full scale - minimum scale).
ILLEGAL RANGE SELECTIONS AND CHANGES
The ranges should only be selected before power is applied. If an invalid input
or output range is selected when power is applied the output is set to approximately
0 VDC and the red LED indicates the error according to Table 1. Power must be
removed and valid ranges selected for the IAMA to operate properly.
If S1 switches 3 through 10 are changed while the IAMA is operating, the red
LED indicates a range change according to Table 1, LED Indications and the
output goes to the previously stored range minimum scale value. Normal
operation will be resumed if the switches are placed back in the previous
positions or power is removed and restored.
BLOCK DIAGRAM
Power mains class A
Enclosure class AEN 55011RF interference
Emissions to EN 50081-2
900 MHz ±5 MHz
Level 3; 10 V/mENV 50204Simulation of cordless telephone
150 KHz - 80 MHz
Level 3; 10 V/rms EN 61000-4-6RF conducted interference
Level 3; 2 Kv power 2
Level 4; 2 Kv I/O 2
EN 61000-4-4Fast transients (burst)
80 MHz - 1 GHz
Level 3; 10 V/m 1
EN 61000-4-3Electromagnetic RF fields
Level 3; 8 Kv air
Level 2; 4 Kv contact EN 61000-4-2Electrostatic discharge
Immunity to EN 50082-2
200 Hz, 50% duty cycle
*Terminal number is dependent on max. input voltage.

744
H
www.redlion.net
CHECKSUM ERRORS
A checksum is performed every time power is applied to the IAMA. If a
checksum error occurs, the LEDs will indicate where the error occurred
according to Table 1, LED Indications. Operation with a checksum error is not
recommended but can be done in critical situations. If an error occurs, re-
calibration of the field or factory ranges to be used must be performed.
If a field checksum error occurs, the IAMA will operate only in factory mode.
If a factory checksum occurs, the IAMA will operate only in a previously
calibrated field mode. Do not perform a field scaling until the factory checksum
is cleared. Since a checksum error is a high priority LED indication, the LEDs will
indicate the error until it is cleared. This will exclude other LED information.
TABLE 1, LED INDICATIONS
GETTING STARTED
One method for the Input (1 or 2 below) should be configured, and one
method for the Output (3 or 4 below) should be configured.
1. FACTORY preprogrammed settings for the Input, see Section 1.0
2. FIELD scaling method for the Input, see Section 2.0
3. FACTORY preprogrammed setting for the Output, see Section 3.0
4. FIELD scaling method for the Output, see Section 4.0
Note: The ranges should only be changed while power is removed from the IAMA.
TABLE 2, OUTPUT RANGE SETTINGS
TABLE 3, INPUT RANGE SETTINGS
FIELD OR FACTORY MODE SELECTION
SELECTING FIELD MODE (2 Methods):
1. Scale the input or output according to SCALING PROCEDURE 2.0 or 4.0
2. Before applying power, set the input or output (or both) field/factory switch
to the up (field) position. Field calibration values will be restored upon
power-up. If the IAMA has not been previously field calibrated, the E2PROM
will contain the factory calibration values which will be restored.
SELECTING FACTORY MODE (2 Methods):
1. Before applying power to the IAMA set the input or output (or both)
field/factory switch to the down (factory) position. Factory calibration values
will be restored upon power-up.
2. While power is applied to the IAMA and it is operating in the field input
and/or output mode, set the desired field/factory switch(s) to the down
(factory) position. The factory calibration values will be restored.
EMC INSTALLATION GUIDELINES
Although this unit is designed with a high degree of immunity to
ElectroMagnetic Interference (EMI), proper installation and wiring methods must
be followed to ensure compatibility in each application. The type of the electrical
noise, source or coupling method into the unit may be different for various
installations. Cable length, routing, and shield termination are very important and
can mean the difference between a successful or troublesome installation.
Listed below are some EMC guidelines for successful installation in an
industrial environment.
1. Use shielded (screened) cables for all Signal and Control inputs. The shield
(screen) pigtail connection should be made as short as possible. The
connection point for the shield depends somewhat upon the application.
Listed below are the recommended methods of connecting the shield, in order
of their effectiveness.
a. Connect the shield only at the rail where the unit is mounted to earth
ground (protective earth).
b. Connect the shield to earth ground at both ends of the cable, usually when
the noise source frequency is above 1 MHz.
c. Connect the shield to common of the unit and leave the other end of the
shield unconnected and insulated from earth ground.
2. Never run Signal or Control cables in the same conduit or raceway with AC
power lines, conductors feeding motors, solenoids, SCR controls, and
heaters, etc. The cables should be run in metal conduit that is properly
grounded. This is especially useful in applications where cable runs are long
and portable two-way radios are used in close proximity or if the installation
is near a commercial radio transmitter.
3. Signal or Control cables within an enclosure should be routed as far away as
possible from contactors, control relays, transformers, and other noisy
components.
4. In extremely high EMI environments, the use of external EMI suppression
devices, such as ferrite suppression cores, is effective. Install them on Signal
and Control cables as close to the unit as possible. Loop the cable through the
core several times or use multiple cores on each cable for additional protection.
Install line filters on the power input cable to the unit to suppress power line
interference. Install them near the power entry point of the enclosure. The
following EMI suppression devices (or equivalent) are recommended:
Ferrite Suppression Cores for signal and control cables:
Fair-Rite # 0443167251 (RLC #FCOR0000)
TDK # ZCAT3035-1330A
Steward #28B2029-0A0
Line Filters for input power cables:
Schaffner # FN610-1/07 (RLC #LFIL0000)
Schaffner # FN670-1.8/07
Corcom #1VR3
Note: Reference manufacturer’s instructions when installing a line filter.
5. Long cable runs are more susceptible to EMI pickup than short cable runs.
Therefore, keep cable runs as short as possible.
WIRING CONNECTIONS
All conductors should meet voltage and current ratings for each terminal.
Also cabling should conform to appropriate standards of good installation, local
codes and regulations. It is recommended that power supplied to the unit be
protected by a fuse or circuit breaker. When wiring the unit, use the numbers on
the label to identify the position number with the proper function. Strip the wire,
leaving approximately 1/4" (6 mm) of bare wire exposed. Insert the wire into
the terminal, and tighten the screw until the wire is clamped tightly.
RANGE DIP
SWITCHES
3 4 5
OUTPUT
RANGE
0 - 5 V 0 0 0
VOLTAGE
OUTPUTS 0 - 10 V 0 0 1
0 - 1 mA 0 1 0
4 - 20 mA 0 1 1
CURRENT
OUTPUTS
0 - 20 mA 1 0 0
Note: DIP switch settings 0 = OFF 1 = ON
Note: DIP switch settings 0 = OFF 1 = ON
CONDITION GREEN LED RED LED
Normal Operation On Off
Scaling Mode Alternate with Red Alternate with Green
Under Range Off Slow Flash (0.8 sec rate)
Over Range Off Fast Flash (0.4 sec rate)
Invalid Range Off On
Illegal Range Change Off On
Factory Checksum Off On, short off
Field Checksum On, short off Off
User Factory Calibration Fast Flash for 2 sec Off
RANGE RANGE DIP SWITCHES
6 7 8 9 10
INPUT
VOLTAGE
0 - 20 mV 00000
0 - 50 mV 00001
0 - 100 mV 00010
0 - 200 mV 00011
0 - 500 mV 00100
0 - 1 V 00101
0 - 2 V 00110
1 - 5 V 00111
0 - 5 V 01000
0 - 10 V 01001
0 - 20 V 01010
0 - 50 V 01011
0 - 100 V 01100
0 - 1 mA 01101
0 - 2 mA 01110
0 - 5 mA 01111
0 - 10 mA 10000
4 - 20 mA 10001
0 - 20 mA 10010
0 - 50 mA 10011
INPUT
CURRENT
0 - 100 mA 10100

745
H
1-717-767-6511
POWER AND OUTPUT CONNECTIONS
Power
Primary power is connected to terminals 2 and 3 (labeled VDC- and VDC+).
For best results, the Power should be relatively “clean” and within the specified
variation limits. Drawing power from heavily loaded circuits or from circuits
that also power loads that cycle on and off, should be avoided.
Current Output
Wiring for a current output is connected to terminals 1 (IOUT-) and 4 (IOUT+).
DIP switch S2 should be set for the desired full scale output current. (20 mA =
ON; 1 mA = OFF).
Voltage Output
Wiring for a voltage output is connected to terminals 5 (VOUT-) and 6
(VOUT+).
Note: Although signals are present at voltage and current outputs at the same
time, only the selected range is in calibration at any one time.
Example: A 0 to 10 VDC output is selected. The voltage level present at the
voltage output terminals is in calibration, but the signal appearing at
the current output terminals does not conform to any of the current
output ranges.
INPUT CONNECTIONS
Current Input
Wiring for a current input is
connected to terminals 10 (IIN) and
12 (INPUT COMMON).
Voltage Input
Wiring for a voltage input is
connected to terminal 12 (INPUT
COMMON) and one of the three
available voltage terminals listed
below, depending on maximum
input voltage.
Terminal 7: 1 VDC max.
Terminal 8: 10 VDC max.
Terminal 9: 100 VDC max.
1.1 Remove power.
1.2 Connect signal wires to the correct input terminals based on the maximum
signal input.
Terminal 7: max. signal input 1 VDC
Terminal 8: max. signal input 10 VDC
Terminal 9: max. signal input 100 VDC
Terminal 10: max. signal input 100 mA
Terminal 12: signal common
1.3 Set Input Range switches (S1 switches 6 through 10) to the desired Input Range
(See Table 3). (0 to 10 VDC range shown).
1.4 Set Input Field/Fact. switch (S1 switch 2) to the off position.
1.5 Apply power to the IAMA.
Solid illumination of Green LED if signal is within the minimum and maximum
limits of the selected input range.
Slow blinking of Red LED if signal decreases below minimum limit of selected input
range.
Rapid blinking of Red LED if signal increases above maximum limit of selected
input range.
1.6 Input set-up complete. Go to Step 3.0 or Step 4.0.
1.0 INPUT SET-UP USING FACTORY CONFIGURATION
SCALING PROCEDURE
The accuracy of the IAMA is dependent on the accuracy of the calibration source and the voltage
or current meter used in the scaling process.
If an out of range (see Table 1 for LED indications) or illegal (full scale less than minimum scale)
scaling is attempted, the factory calibration values will be stored in place of the field values. This will
prohibit erroneous operation of the IAMA. The scaling procedure will have to be repeated.
The final storage of the zero and full scale values to E2PROM is not done until the last transition of
the mode/calibration DIP switches (S1-1 or S1-2). Therefore, the scaling can be aborted any time
before the full scale value is saved. This is accomplished by cycling power to the IAMA. The IAMA
will restore the factory or previous field scaling values at power up depending on the setting of the
DIP switches. See Mode Selection for more detailed instructions for selecting factory and field modes
at power up. See Table 2 and 3 for the input and output range DIP switch settings.
Step 1.3
Step 1.4

746
H
www.redlion.net
2.1 Remove power.
2.2 Connect signal source to the correct input terminals based on the maximum
signal input.
Terminal 7: max. signal input 1 VDC
Terminal 8: max. signal input 10 VDC
Terminal 9: max. signal input 100 VDC
Terminal 10: max. signal input 100 mA
Terminal 12: signal common
2.3 Set Input Range switches (S1 switches 6 through 10) to the desired input range
(See Table 3). Select the lowest possible range that will support the desired
maximum signal. Example: if the desired span is 20 mV to 85 mV, the best range
selection is 0 to 100 mV. The 0 to 200 mV will also suffice, but the accuracy will
be reduced. (0 to 10 VDC range shown).
2.4 Set Input Field/Fact. switch (S1 switch 2) to the off position.
2.5 Apply power to the IAMA and allow a warm up period of five minutes. Follow
the manufacturer’s warm up procedure for the calibration source.
2.6 Set Input Field/Fact. switch (S1 switch 2) to the on position.
The Red and Green LEDs will alternately blink.
2.7 Apply desired minimum scale signal.
2.8 Set Input Field/Fact. switch (S1 switch 2) to the off position.
The Red and Green LEDs will alternately blink.
If the signal is equal or below the minimum limit of the selected range, the Red LED
blinks slowly and the Green LED turns off. Removing power aborts scaling,
begin at Step 2.1.
2.9 Apply maximum scale input.
The Red and Green LEDs will alternately blink.
2.10 Set Input Field/Fact. switch (S1 switch 2) to the on position.
Red LED extinguishes and Green LED becomes solid. Your scaled values are now
saved and recalled if the Input Field/Fact. switch (S1 switch 2) is in the on
position when power is applied.
Red LED will blink slowly if signal is equal to or below minimum limit and blinks
rapidly if signal increases above maximum limit.
2.11 Input scaling complete. Go to Step 3.0 or Step 4.0.
3.1 Remove power.
3.2 For voltage output values, go to Step 3.4
For current output values, continue at Step 3.3
3.3 Set 20 mA/1 mA switch (S2) to desired full scale output.
(20 mA - on; 1 mA - off)
3.4 Set Output Field/Fact. switch (S1 switch 1) to the off position.
3.5 Set Output Range switches (S1 switches 3, 4, and 5) to the desired Output Range
(See Table 2). (4 to 20 mA range shown)
3.6 Connect external device to appropriate IAMA output terminals.
Terminal 6: + Voltage
Terminal 5: - Voltage
Terminal 4: + Current
Terminal 1: - Current
3.7 Apply power to the IAMA and allow a warm up period of five minutes. Output
set-up complete.
2.0 INPUT SCALING USING FIELD CONFIGURATION
3.0 OUTPUT SET-UP USING FACTORY CONFIGURATION
Step 2.3
Step 2.4
Step 2.6
Step 2.8
Step 3.5
Step 2.10
Step 3.3 & 3.4

747
H
1-717-767-6511
4.1 Remove power.
4.2 For voltage output scaling, go to Step 4.4.
For current output scaling, continue at Step 4.3.
4.3 Set 20 mA/1 mA switch (S2) to desired full scale output.
(20 mA - on; 1 mA - off)
4.4 Set Output Field/Fact. switch (S1 switch 1) to the off position.
4.5 Set Output Range switches (S1 switches 3, 4, and 5) to the desired Output Range
(See Table 2). Select the lowest possible range that will support the desired full
scale output. Example: if the desired span is 1 V to 4 V, the best range selection is
0 to 5 V. (0 to 5 VDC range shown)
4.6 Connect volt or current meter to appropriate IAMA output terminals.
Terminal 6: + Voltage
Terminal 5: - Voltage
Terminal 4: + Current
Terminal 1: - Current
4.7 An input signal is required to complete output scaling. If previous scaled input is
used (completed in Step 2.0), Input Field/Fact. switch (S1 switch 2) and Input
Range switches (S1 switches 6 through 10) must remain in the same positions. If
another signal source is used, set Input Field/Fact. switch (S1 switch 2) to off
position and Input Range switches (S1 switches 6 through 10) to the desired input
range (See Table 3).
4.8 Connect input signal source to the correct input terminals based on the maximum
signal input.
Terminal 7: max. signal input 1 VDC
Terminal 8: max. signal input 10 VDC
Terminal 9: max. signal input 100 VDC
Terminal 10: max. signal input 100 mA
Terminal 12: signal common
4.9 Apply power to the IAMA and allow a warm up period of five minutes.
4.10 Set Output Field/Fact. switch (S1 switch 1) to the on position.
The Red and Green LEDs will alternately blink.
If Red LED blinks slowly, increase signal until Red and Green LEDs alternately
blink.
4.11 Adjust the input signal until the desired * minimum output level is displayed on
the volt or current meter.
The Red and Green LEDs will alternately blink.
4.12 Set Output Field/Fact. switch (S1 switch 1) to the off position.
The Red and Green LEDs alternately blink.
If the signal is equal to or below the minimum limit of the selected range, the Red
LED blinks slowly and the Green LED turns off. Removing power aborts scaling.
Start over at Step 4.1.
4.13 Adjust the input signal until the desired * maximum output level is displayed on
the volt or current meter.
4.14 Set Output Field/Fact. switch (S1 switch 1) to the on position.
Red LED extinguishes and Green LED becomes solid. Your scaled values are now
saved and will be recalled if the Output Field/Fact. switch (S1 switch 1) is in
the on position when power is applied.
4.15 Output scaling is complete.
* If the minimum output is higher than the maximum output the module reverses
its output behaviour accordingly.
4.0 OUTPUT SCALING USING FIELD CONFIGURATION
Step 4.4
Step 4.5
Step 4.10
Step 4.12
Step 4.14

748
H
www.redlion.net
The following list outlines conditions that are unique to factory recalibration:
1. Unlike the field scaling procedures, there are no software under and over
range indications while performing a factory recalibration. Therefore,
care must be taken to insure the selected range extents are not exceeded.
The minimum scale and full scale calibration values must be set to the
extents of the range being calibrated.
For example: If the Input Range DIP switches are set for the 4-20 mA
range, minimum scale must be set at 4 mA, and full scale must be set
at 20 mA.
2. At least one input calibration must be completed before calibrating any
output range. When calibrating the input voltage range, it is
recommended that a range above 1 V be used to provide better accuracy.
3. If multiple input or output ranges are to be calibrated, DO NOT
REMOVE POWER TO CHANGE THE RANGE. Place the appropriate
Field/Fact. DIP switch; S1-1 for outputs, and S1-2 for inputs to the down
position, and set the remaining DIP switches for the range to be
calibrated. Note: Be sure to change the terminal wiring to match the Input
or Output range DIP switch settings before performing the calibration
procedure. Set calibration source to 0 V or 0 mA before changing wiring.
INPUT RECALIBRATION
1. To enter the factory calibration mode, set switches S1-1 and S1-2 down, S1-
3 through S1-5 up, and S1-6 through S1-10 down.
2. Connect a signal source to the correct input terminals based on the
maximum signal input to be calibrated. If an output range will be calibrated
after the input range is calibrated, connect a voltage or current meter to the
appropriate output terminals at this time.
3. Apply power to the IAMA. After the version number indication, the green
LED will flash rapidly for 2 seconds indicating the factory calibration mode
has been entered. Allow the IAMA to warm up for 5 minutes minimum and
follow the manufacturer’s warm up procedure for the calibration source.
4. Set the Input Range DIP switches to the desired input range according to
Table 3.
5. Complete Steps 2.6 through 2.10 of Input Scaling Using Field
Configuration. Note: There will be no over or under range indication of the
LED’s during this procedure, so use care not to exceed the range extents.
6. If an output is to be calibrated, continue from #2 of Output Recalibration
below. If no further input or output calibration is to be completed, return
S1-1 and S1-2 to the down position and remove power from the IAMA.
Apply power and check for accurate operation of the newly calibrated range
or ranges.
OUTPUT RECALIBRATION
1. Complete 1 through 5 of the input recalibration procedure for at least
one range.
2. For current output, set 20 mA/1 mA switch (S2) to desired full scale output.
(20 mA - on; 1 mA - off)
3. Set Output Field/Fact. switch (S1 switch 1) to the off position.
4. Set the Output Range DIP switches to the desired output range according to
Table 2.
5. Complete Steps 4.10 through 4.14 of Output Scaling Using Field
Configuration. Note: There will be no over or under range indication of the
LED’s during this procedure, so use care not to exceed the range extents.
6. If no further calibration is to be completed, return S1-1 and S1-2 to the down
position and remove power from the IAMA. Apply power and check for
accurate operation of the newly calibrated range or ranges.
RECALIBRATING FACTORY STORED VALUES
WARNING: Read the complete procedure at least
once before attempting to recalibrate the factory
values. This procedure should only be
performed due to factory checksum error or
unacceptable error. This procedure should be
performed by qualified technicians using
accurate calibration equipment.
TROUBLESHOOTING
For further technical assistance, contact technical support at the appropriate company numbers listed.
INSTALLATION
The unit is equipped with a universal mounting foot for attachment to standard DIN style mounting rails, including G profile rail
according to EN50035 - G32 , and top hat (T) profile rail according to EN50022 - 35 x 7.5 and 35 x 15. The unit should be installed in a
location that does not exceed the maximum operating temperature and provides good air circulation. Placing the unit near devices that
generate excessive heat should be avoided.
G Rail Installation
To install the IAMA on a “G”
style DIN rail, angle the module
so that the upper groove of the
“foot” catches under the lip of the
top rail. Push the module toward
the rail until it snaps into place.
To remove a module from the
rail, push up on the bottom of the
module while pulling out and
away from the rail.
T Rail Installation
To install the IAMA on a “T”
style rail, angle the module so
that the top groove of the “foot”
is located over the lip of the top
rail. Push the module toward the
rail until it snaps into place. To
remove a module from the rail,
insert a screwdriver into the slot
on the bottom of the “foot”, and
pry upwards on the module until
it releases from the rail.

749
H
1-717-767-6511
APPLICATION
Cost efficiency measurements of a printing company included the
reduction of bulk stock of the various inks used in their printing processes.
The company currently had various ink flow and level devices with different
current and voltage outputs and wanted to record these measurements into a
control room PC. Several IAMA Universal Signal Conditioning Modules
were the answer. The IAMA’s universal input allowed for easy signal
conditioning of the various output signals to the required PC’s Bus Board 0
to 10 VDC input signal. The factory calibration settings of the IAMA could
be used with the devices in which the flow and level pressure was linear to
the signal. The IAMA could also be scaled utilizing the field calibration
method with the devices where pressure affected the signal slope
specifications. In this case, the IAMA’s re-transmitted 0 to 10 VDC output
was field calibrated, negating the expense and time required to rewrite the
PC’s software parameters. In addition to accepting multiple signal types and
field calibration features, the IAMA also provides the necessary electrical
isolation between the control room PC and the hazards of the printing floor
electrical noise.

750
H
www.redlion.net
z3-WAY ISOLATION OF ANALOG SIGNALS
zUNIVERSAL CONVERSION MODULE - INPUTS AND OUTPUTS
SELECTED VIA DIP SWITCH SETTINGS
zOVER 35 INPUT AND OUTPUT ANALOG CONVERSION
COMBINATIONS
zULTRA SLIM DESIGN – ONLY 0.244" WIDE
z19 to 30 VDC POWER
GENERAL DESCRIPTION
The IAMA can isolate and convert over 35 combinations of analog signal
ranges. The IAMA converts and transmits signals linearly proportional to the
input. DIP switch range selection eliminates the need to order and stock
different modules for each input and output signal range, and allows quick and
convenient setup for over 35 standard signal conversions. In addition to the
conversion capabilities, the IAMA modules feature optically isolated
Input/Output signal circuits and isolated Power to Input, Power to Output
circuits. The modules’ overall full scale accuracy typically exceed 0.04%. DIN
rail mounting saves time and panel space. The units are equipped with universal
mounting feet for attachment to standard top hat profile rail according to
EN50022 - 35x7.5.
SAFETY SUMMARY
All safety related regulations, local codes and instructions that appear in the
manual or on equipment must be observed to ensure personal safety and to
prevent damage to either the instrument or equipment connected to it. If
equipment is used in a manner not specified by the manufacturer, the protection
provided by the equipment may be impaired.
SPECIFICATIONS
1. POWER: 19.2 to 30 V DC, 450 mW max.
2. INPUT / OUTPUT RANGES: See table 1
3. SPAN ADJUSTMENT: Potentiometer, located below transparent top cover.
4. MAX INPUT SIGNAL:
Current: 50 mA
Voltage: 30 V
5. INPUT RESISTANCE:
Current: Approx. 50 Ω
Voltage: Approx. 100 kΩ
6. MAX OUTPUT SIGNAL:
Current: 28 mA/12.5 V
Voltage: 12.5 V/22 mA
7. LOAD RESISTANCE:
Current: 500 Ωmax.
Voltage: 10 kΩmin
8. OUTPUT COMPLIANCE:
Current: 12.5 V max (500 Ω). Ripple: < 20 mV
Voltage: 22 mA (10 kΩ). Ripple: < 20 mV
9. TRANSMISSION ERROR:
The transmission error without adjustment is < 0.4%. Using the
potentiometer, the error can be adjusted to < 0.1%.
10. TEMPERATURE COEFFICIENT:
Max.: < 0.01%/K
Typ.: < 0.002%/K
11. CUT-OFF FREQUENCY: 100 Hz
12. STEP RESPONSE (FROM 10 to 90 %): 3.5 msec
13. TEST VOLTAGE (Input/Output/Supply): 1.5 kV, 50 Hz, 1 min.
14. ENVIRONMENTAL CONDITIONS:
Operating Temperature Range: -20°C to 65°C (-4°F to 149°F)
Storage Temperature Range: -40°C to +85°C (-40°F to 185°F)
MODEL IAMA - CONFIGURABLE 3-WAY ISOLATING AMPLIFIER
DIMENSIONS In inches (mm)
MODEL NO. DESCRIPTION PART NUMBER
IAMA IAMA0006Configurable 3-Way Isolating Amplifier
CAUTION: Read complete
instructions prior to installation
and operation of the unit.
CAUTION: Risk of electric shock.
ORDERING INFORMATION
CCUS
US
UL
R
LISTED
PROCESS CONTROL
EQUIPMENT FOR HAZARDOUS
LOCATIONS 31ZN
CLASS 1, DIV 2
GROUPS A, B, C, D T5

751
H
1-717-767-6511
15. TESTS/APPROVALS:
PROCESS CONTROL EQUIPMENT FOR
HAZARDOUS LOCATIONS
31ZN
Class I Div 2 Groups A, B, C, D T5
A) This equipment is suitable for use in Class I, Division 2, Groups A, B,
C and D or non- hazardous locations only.
B) Warning - explosion hazard - substitution of components may impair
suitability for Class 1, Division 2.
C) Warning - explosion hazard - do not disconnect equipment unless power
has been switched off or the area is known to be non-hazardous.
16. CERTIFICATIONS AND COMPLIANCES:
1EN 61000 corresponds to IEC 1000
2Criterion B: Temporary impairment to operational behavior that is corrected
by the device itself.
3Criterion A: Normal operating behavior within the defined limits.
4EN 55011 corresponds to CISPR11
5Class A: Area of application industry.
17. CONNECTIONS: 12 AWG max., Stripping length: 0.47" (12 mm)
18. CONSTRUCTION: Polybutylenterephthalate PBT, black
19. MOUNTING: Standard DIN top hat (T) profile rail according to EN50022
- 35x7.5
20. WEIGHT: 2 oz. (54 g)
INPUTS
The IAMA accepts a full range of process signal inputs and isolates and
converts these signals to common industrial control signals. The input signal
combinations are configured by making specific DIP switch selections on the 6
and 2 position DIP switches.
OUTPUTS
As with the input choices, the process signal output of the modules is DIP
switch selectable. The maximum output current signal is 28 mA with =500 Ω
output resistance and the maximum output voltage signal is 12.5 V with =10 KΩ
output resistance. The transmission error without adjustment is < 0.4%. Using
the potentiometer, the error can be adjusted to < 0.1%.
TABLE 1 - CONFIGURATION
C
C
US
US
UL
R
LISTED
Immunity to Interference According to EN 61000-6-21
Discharge of static electricity (ESD) EN 61000-4-2 Criterion B2
Electromagnetic HF field EN 61000-4-3 Criterion A3
Fast transients (Burst) EN 61000-4-4 Criterion B2
Surge voltage capacities (Surge) EN 61000-4-5 Criterion B2
Conducted disturbance EN 61000-4-6 Criterion A3
Noise Emission According to EN 50081-2
Noise emission of housing EN 550114Class A5
Conformance With EMC Guideline 89/336/EEC And Low Voltage Directive 73/23/EEC
BLOCK DIAGRAM
IN
RANGES
OUT 1
DIP SWITCHES
OUTPUT (S2)
234561
INPUT (S1)
2
0 –10 V 0 – 20 mA off off off off off off off off
4 - 20 mA off off off off off ON off off
0 – 10 V ON off ON off off off off off
2 – 10 V ON off ON off off ON off off
0 – 5 V ON ON off off off off off off
1 – 5 V ON ON off off off ON off off
2 – 10 V 0 – 20 mA off off off ON ON off off off
4 - 20 mA off off off off off off off off
0 – 10 V ON off ON ON ON off off off
2 – 10 V ON off ON off off off off off
0 – 5 V ON ON off ON ON off off off
1 – 5 V ON ON off off off off off off
0 – 5 V 0 – 20 mA off off off off off off ON off
4 - 20 mA off off off off off ON ON off
0 – 10 V ON off ON off off off ON off
2 – 10 V ON off ON off off ON ON off
0 – 5 V ON ON off off off off ON off
1 – 5 V ON ON off off off ON ON off
1 – 5 V 0 – 20 mA off off off ON ON off ON off
4 - 20 mA off off off off off off ON off
0 – 10 V ON off ON ON ON off ON off
2 – 10 V ON off ON off off off ON off
0 – 5 V ON ON off ON ON off ON off
1 – 5 V ON ON off off off off ON off
0 – 20 mA 0 – 20 mA off off off off off off off ON
4 - 20 mA off off off off off ON off ON
0 – 10 V ON off ON off off off off ON
2 – 10 V ON off ON off off ON off ON
0 – 5 V ON ON off off off off off ON
1 – 5 V ON ON off off off ON off ON
4 - 20 mA 0 – 20 mA off off off ON ON off off ON
4 - 20 mA off off off off off off off ON
0 – 10 V ON off ON ON ON off off ON
2 – 10 V ON off ON off off off off ON
0 – 5 V ON ON off ON ON off off ON
1 – 5 V ON ON off off off off off ON

752
H
www.redlion.net
APPLICATION
Cost efficiency measurements of a printing company included the reduction
of bulk stock of the various inks used in their printing processes. The company
currently had various ink flow and level devices with different current and
voltage outputs and wanted to record these measurements into a control
room PC. Several IAMA Universal Signal Conditioning Modules were
the answer. The IAMA’s universal input allowed for easy signal
conditioning of the various output signals to the required PC’s Bus
Board 0 to 10 VDC input signal. In this case, the IAMA’s re-
transmitted 0 to 10 VDC output was field calibrated, negating the
expense and time required to rewrite the PC’s software
parameters. In addition to accepting multiple signal types,
the IAMA also provides the necessary electrical isolation
between the control room PC and the hazards of the
printing floor electrical noise.
WIRING CONNECTIONS
Primary power is connected to terminals 7 or 3 (19.2 – 30 VDC) and 8 or 4
(GND 3). For best results, the power should be relatively “clean” and within the
specified variation limits. Drawing power from heavily loaded circuits or from
circuits that also power loads that cycle on and off, should be avoided.
The input signal is connected to pins 1 (In U,I) and 2 (GND 1). Connections
for the output signal are made on pins 5 (Out U,I) and 6 (GND 2).
INSTALLATION
The unit is equipped with a universal mounting foot for attachment to
standard DIN style top hat (T) profile rail according to EN50022 - 35 x 7.5 and
35 x 15. The unit should be installed in a location that does not exceed the
maximum operating temperature and provides good air circulation. Placing the
unit near devices that generate excessive heat should be avoided.
T Rail Installation
To install the IAMA on a “T”
style rail, angle the module so that
the top groove of the “foot” is
located over the lip of the top rail.
Push the module toward the rail
until it snaps into place. To
remove a module from the rail,
insert a screwdriver into the slot
on the bottom of the “foot”, and
pry upwards on the module until it
releases from the rail.

753
H
1-717-767-6511
z3-WAY ISOLATION OF ANALOG SIGNALS
zUNIVERSAL CONVERSION MODULE - INPUTS AND OUTPUTS
CAN BE SELECTED VIA DIP SWITCH SETTINGS
zOVER 100 INPUT AND OUTPUT ANALOG CONVERSION
COMBINATIONS
z18 to 30 VDC MODULE POWER
DESCRIPTION
The AAMA3535 Universal Signal Conditioning Module can isolate and
convert over 100 combinations of industry standard analog signal ranges. The
universal DIP switch selection feature eliminates the need to order and stock
different modules for each input and output signal.
In addition to the conversion capabilities, the AAMA3535 module features
an optically isolated Input/Output signal circuit and a transformer (galvanically)
isolated Power to Input, Power to Output circuit.
The AAMA3535 module meets the stringent IEC 801 Standard for surge
suppression, noise emission and noise immunity. The module is also CE marked
for European applications.
The module’s overall full scale accuracy can exceed 0.005% depending upon
range selection and calibration. A hybrid SMD calibration circuit stores all
range and amplification settings. The hybrid circuit maintains a very high
accuracy and low drift output signal.
The module’s environmental operating temperature range is -20°C to +65°C.
The modular high density packaging and mounting saves time and panel space.
The modules snap onto standard 35 mm flat DIN rail, and uses removable
terminal blocks for easy module wiring.
SPECIFICATIONS
1. POWER SUPPLY VOLTAGE: 18 to 30 VDC @ 60 mA
2. INPUT RANGES:
3. ZERO/SPAN ADJUSTMENTS: Range Dependent
4. MAX. INPUT SIGNAL:
Current Input: 50 mA
Voltage Input: 30 V
5. INPUT RESISTANCE:
Current: 50 Ω
Voltage: 1 MΩ
6. INPUT PROTECTION: Surge suppressor diodes
7. OUTPUT RANGES:
8. MAX. OUTPUT SIGNAL:
Current Output: 30 mA
Voltage Output: 15 V
9. LOAD RESISTANCE:
Current Output: ≤500 Ω max.
Voltage Output: ≥ 5 KΩ
10. ISOLATION LEVEL INPUT/OUTPUT: 1.5 kV @ 50 Hz, 1 minute Opto
Isolation
11. POWER TO INPUT/OUTPUT: 1.0 kV @ 50 Hz, 1 minute Transformer
DC/DC
12. MAX. INPUT FREQUENCY: 30 Hz
13. RESPONSE TIME: 0.034 sec. max.
14. OVERALL FULL SCALE ACCURACY: 0.1% to 0.05% Dependent on
Calibration Source
15. OPERATING TEMPERATURE RANGE: -20 to +65°C (-4 to 145°F)
16. TEMPERATURE COEFFICIENT: 100 ppm/K
17. CONSTRUCTION: Case body is green, high impact plastic
18. CONNECTIONS: 14 AWG wire max.
19. MOUNTING: Standard DIN Top hat (T) profile rail according to EN50022
- 35 x 7.5 and 35 x 15
20. WEIGHT: 3.76 oz (106.59 g)
ORDERING INFORMATION
The AAMA3535 module is ordered nonconfigured, allowing the user the
flexibility to select their input and output signals by setting the appropriate DIP
switch combination.
MODEL AAMA - UNIVERSAL SIGNAL CONDITIONING MODULE
DIMENSIONS In inches (mm)
0 to 5 V ±5 V 0 to 10 V ±10 V
0 to 20 mA 4 to 20 mA 1 to 5 V
1 to 5 V4 to 20 mA
0 to 20 mA0 to 5 mA±20 V±10 V±5 V
±2 V±1 V±500 mV±300 mV±200 mV
0 to 500 mV
±100 mV
0 to 300 mV
0 to 20 V
0 to 200 mV
0 to 10 V
0 to 100 mV
0 to 5 V
0 to 60 mV
0 to 1 V
AAMA3535Universal Signal ConditioningAAMA
PART NUMBERDESCRIPTIONMODEL NO.

754
H
www.redlion.net
MODULE ISOLATION
AAMA3535 modules feature “3-Way” Signal Isolation. The 3-Way isolation
is a combination of optical and transformer isolation. The optical isolation
provides common mode voltage (CMV) isolation up to 1.0 kV between the
sensor input and the process signal output. The module’s power is isolated from
the sensor signal input and the process signal output by a DC/DC transformer
isolation circuit.
SURGE AND SHORT CIRCUIT PROTECTION
The Signal Conditioning Module is designed for use in industrial
environments. Stringent IEC testing has shown that the modules pass the IEC
801.2 (Electrostatic Discharge) and IEC 801.4 (Electrical Fast Transient/Burst)
tests. Suppressor diodes protect both input and output circuits from wiring errors.
INPUTS
The AAMA3535 module accepts a full range of process signal inputs and
will isolate and/or convert these signals to common industrial control signals.
The input and output signal combinations are configured by making specific
DIP switch selections. The DIP switches can be easily accessed by pushing the
side tabs and sliding the module up in the case.
OUTPUTS
As with the input choices, the process signal outputs of the module are DIP
switch selectable. The maximum output current signal is 30 mA with ≤500 Ω
output resistance and the maximum output voltage signal is 15 V with ≥5 KΩ
output resistance.
ZERO AND SPAN
The AAMA3535 module incorporates two
potentiometers for adjusting separate zero and
span settings. The module provides a ±5% zero
and span fine calibration adjustment. To use this
calibration feature, the zero point should be set
first, by adjusting the potentiometer labeled
ZERO. Adjusting the Zero reference will
proportionally offset the output range. After the
Zero has been set, adjusting the SPAN
potentiometer will change the signal gain.
BLOCK DIAGRAM
INPUT/OUTPUT DIP SWITCH SELECTION TABLES
DIP SWITCH SELECTIONS FOR 0-5 VOLT OUTPUT
Note: Blank space = DIP switch OFF.
DIP SWITCHES
WIRING DIAGRAM
±300 mVONONONONONON±300 mV
±60 mVONONONONONONON± 60 mV
0-100 mVONONONON0-100 mV
0-60 mVONONONONONON0-60 mV
1-5 VONON1-5 V
4-20mAONONONON4-20 mA
0-20 mAONONONONON0-20 mA
0-5 mAONONONONONONON0-5 mA
±20 VONONONON±20 V
±10 VONONONON±10 V
±5 VONONONON±5 V
±2 VONONONONON±2 V
±1 VONONONONON±1 V
±500 mVONONONONON±500 mV
±200 mVONONONONON±200 mV
±100 mVONONONONON±100 mV
0-20 VONONON0-20 V
0-10 VONONON0-10 V
0-5 VONONON0-5 V
0-2 VONONONON0-2 V
0-1 VONONONON0-1 V
0-500 mVONONONON0-500 mV
0-200 mVONONONON0-200 mV
0-300 mVONONONONON0-300 mV
8765432110987 Input654321Input
DIP SWITCH 1DIP SWITCH 2

755
H
1-717-767-6511
DIP SWITCH SELECTIONS FOR 0-10 VOLT OUTPUT
DIP SWITCH SELECTIONS FOR ±5 VOLT OUTPUT
Note: Blank space = DIP switch OFF.
Note: Blank space = DIP switch OFF.
0-5 mAONONONONONONONON0-5 mA
±300 mVONONONONONONON±300 mV
±60 mVONONONONONONONON±60 mV
0-300 mVONONONONONON0-300 mV
0-60 mVONONON
1-5 VONONON1-5 V
4-20 mAONONONONON4-20 mA
0-20 mAONONONONONON0-20 mA
±20 VONONONONON±20 V
±10 VONONONONON±10 V
±5 VONONONONON±5 V
±2 VONONONONONON±2 V
±1 VONONONONONON±1 V
±500 mVONONONONONON±500 mV
±200 mVONONONONONON±200 mV
±100 mVONONONONONON±100 mV
0-20 VONONONON0-20 V
0-10 VONONONON0-10 V
0-5 VONONONON0-5 V
0-2 VONONONONON0-2 V
0-1 VONONONONON0-1 V
0-500 mVONONONONON0-500 mV
0-200 mVONONONONON0-200 mV
0-100 mVONONONONON0-100 mV
876543211098765 Input4321Input
DIP SWITCH 1
ON
DIP SWITCH 2
ONONON0-60 mV
0-5 mAONONONONONONONONONON0-5 mA
±300 mVONONONONON±300 mV
0-2 VONONONONONON0-2 V
±60 mVONONONONONON±60 mV
0-300 mVONONONONONONONON0-300 mV
0-60 mVONONON
1-5 VONONONON1-5 V
4-20 mAONONONONONON4-20 mA
0-20 mAONONONONONONONON0-20 mA
±20 VONONON±20 V
±10 VONONON±10 V
±5 VONONON±5 V
±2 VONONONON±2 V
±1 VONONONON±1 V
±500 mVONONONON±500 mV
±200 mVONONONON±200 mV
±100 mVONONONON±100 mV
0-20 VONONONONONON0-20 V
0-10 VONONONONONON0-10 V
0-5 VONONONONON0-5 V
0-2 VONONONONONONON0-2 V
0-1 VONONONONONONON0-1 V
0-500 mVONONONONONONON0-500 mV
0-200 mVONONONONONONON0-200 mV
0-100 mVONONONONONONON0-100 mV
8765432110987 Input654321Input
DIP SWITCH 1
ONONON
DIP SWITCH 2
ONONON0-60 mV

756
H
www.redlion.net
DIP SWITCH SELECTIONS FOR ±10 VOLT OUTPUT
Note: Blank space = DIP switch OFF.
DIP SWITCH SELECTIONS FOR 1-5 VOLT OUTPUT
Note: Blank space = DIP switch OFF.
0-100 mV ON ON
DIP SWITCH 2
ON
DIP SWITCH 1
Input 12345678910 1 2345678
0-60 mV ON ON
Input
ON ON ON ON 0-60 mV
0-200 mV ON ON ON ON 0-200 mV
0-500 mV ON ON ON ON 0-500 mV
0-1 V ON ON ON ON 0-1 V
0-2 V ON ON ON ON 0-2 V
0-5 V ON ON 0-5 V
0-10 V ON ON ON 0-10 V
0-20 V ON ON ON 0-20 V
ON 0-100 mV
0-300 mV ON ON ON ON ON 0-300 mV
0-20 mA ON ON ON ON ON 0-20 mA
0-5 mA ON ON ON ON ON ON ON 0-5 mA
4-20 mA ON ON ON ON ON 4-20 mA
1-5 V ON ON ON 1-5 V
0-20 mAONONONONONONONONON0-20 mA
±300 mVONONONONONON±300 mV
±100 mVONONONONON±100 mV
0-300 mVONONONONONONONONON0-300 mV
0-100 mVON
1-5 VONONONONON1-5 V
4-20 mAONONONONONONON4-20 mA
0-5 mAONONONONONONON
ON
ONONON0-5 mA
±20 VONONONON±20 V
±10 VONONONON±10 V
±5 VONONONON±5 V
±2 VONONONONON±2 V
±1 VONONONONON±1 V
±500 mVONONONONON±500 mV
±200 mVONONONONON±200 mV
±60 mVONONONONONONON±60 mV
0-20 VONONONONONONON0-20 V
0-10 VONONONONONONON0-10 V
0-5 VONONONONONONON0-5 V
0-2 VONONONONONONONON0-2 V
0-1 VONONONONONONONON0-1 V
0-500 mVONONONONONONONON0-500 mV
0-200 mVONONONONONONONON0-200 mV
0-60 mVONONONONONONONONONON0-60 mV
Input8765432110987654321Input
DIP SWITCH 1
ONONON
DIP SWITCH 2
ONONONON0-100 mV

757
H
1-717-767-6511
CALIBRATION PROCEDURE
Module accuracy is dependent upon your calibration reference. The higher
your calibration source accuracy, the lower the overall signal conditioner
conversion error.
CALIBRATION OF MODULES WITH 0 to 5 V, 0 to 10 V
Output adjustment of the 0 to 5 V or 0 to 10 V range:
1. Set DIP switches as shown in the DIP switch selection Tables.
2. Apply power, and let the unit stabilize for 5 minutes.
3. Set up output adjustment:
a. Apply low scale input range value; adjust zero pot for 0 V, ±0.5 mV.
b. Finally, apply full scale input from calibration source; adjust span pot for
full scale ±0.5 mV.
CALIBRATION OF MODULES
WITH ±5 V, ±10 V, 1 to 5 V, 4 to 20 mA OR 0 to 20 mA
Output adjustment of ±5 V, ±10 V, 1 to 5 V, 4 to 20 mA or 0 to 20 mA ranges:
1. Set DIP switches as shown in the DIP switch selection Tables.
2. Apply power, and let the unit stabilize for 5 minutes.
3. Set up output adjustment:
a. Apply low scale input range value from calibration source; record output
as MV1. (If using 0 to 20 mA output range, apply 2 mA for low scale
input value.)
b. Apply full scale input from calibration source; record output as MV2.
4. With full scale input value still applied:
a. First calculate the span pot adjustment point “A” using the formula:
A= MV2 X constant/ (MV2-MV1). Adjust the span pot for value “A”, plus
or minus the adjustment tolerance. (See below table for constant and
tolerance.)
b. Finally, adjust the zero pot for the nominal full scale output value, plus or
minus the adjustment tolerance.
The Constants and Adjustment Tolerances are as follows:
INPUT RANGE CONSTANT ADJUSTMENT TOLERANCE
±5 V
±10 V
10 V
20 V
±0.5 mV
±0.5 mV
1 to 5 V
0 to 20 mA
4 V
18 mA
±1 mV
±1 μA
4 to 20 mA 16 mA ±1 μA
DIP SWITCH SELECTIONS FOR 4-20 mA OUTPUT
Note: Blank space = DIP switch OFF.
DIP SWITCH SELECTIONS FOR 0-20 mA OUTPUT
Note: Blank space = DIP switch OFF.
0-20 mAONONONONONON0-20 mA
±300 mVONONONONONONON±300 mV
±100 mVONONONONONON±100 mV
0-300 mVONONONONONON0-300 mV
0-100 mVON
1-5 VONONON1-5 V
4-20 mAONONONONON4-20 mA
0-5 mAONONONONONONONON0-5 mA
±20 VONONONONON±20 V
±10 VONONONONON±10 V
±5 VONONONONON±5 V
±2 VONONONONONON±2 V
±1 VONONONONONON±1 V
±500 mVONONONONONON±500 mV
±200 mVONONONONONON±200 mV
±60 mVONONONONONONONON±60 mV
0-20 VONONONON0-20 V
0-10 VONONONON0-10 V
0-5 VONONONON0-5 V
0-2 VONONONONON0-2 V
0-1 VONONONONON0-1 V
0-500 mVONONONONON0-500 mV
0-200 mVONONONONON0-200 mV
0-60 mVONONONONONONON0-60 mV
8765432110987654321Input
DIP SWITCH 1
Input
ON
DIP SWITCH 2
ONONON0-100 mV
1-5 VONONONON1-5 V
4-20 mAONONONONONON4-20 mA
0-5 mAONONONONONONONON0-5 mA
0-20 mAONONONONONON0-20 mA
0-300 mVONONONONONON0-300 mV
0-100 mVON
0-20 VONONONON0-20 V
0-10 VONONONON0-10 V
0-5 VONONONON0-5 V
0-2 VONONONONON0-2 V
0-1 VONONONONON0-1 V
0-500 mVONONONONON0-500 mV
0-200 mVONONONONON0-200 mV
0-60 mVONONONONONONON0-60 mV
Input8765432110987654321Input
DIP SWITCH 1
ON
DIP SWITCH 2
ONONON0-100 mV

758
H
www.redlion.net
MODEL AIMI - 0 (4) TO 20 MA PASSIVE LOOP POWERED ISOLATOR
SPECIFICATIONS
1. INPUT RANGE: 0(4) to 20 mA
2. MAXIMUM INPUT CURRENT/VOLTAGE: 50 mA/30 VDC
3. INPUT RESISTANCE@ 20mA: 125-1125 Ω (dependent on load)
4. VOLTAGE DROP AT INPUT: (See Chart at Right)
5. MAXIMUM INPUT FREQUENCY: <75 Hz
6. RESPONSE TIME: 5 msec. max.
7. OUTPUT SIGNAL: 0(4) to 20 mA
Max. Load Resistance:≤1375 Ω @ 20 mA
8. ISOLATION VOLTAGE: 510 V, 50 Hz, for 1 minute
9. ACCURACY: ≤0.1% of full scale
10. OPERATING TEMPERATURE RANGE: -10 to +70°C
11. TEMPERATURE COEFFICIENT: ≤0.002%/K of the measured value
12. CONSTRUCTION: Case body is green, Polyamide PA
13. MOUNTING: Standard DIN style rail, including top hat (T) profile rail
according to EN50022 - 35 7.5 and 35 15, and G profile rail according
to EN50035 - G32.
14. WEIGHT: 2.976 oz (84.37 g)
DESCRIPTION
The AIMI0202 passive isolator is used for the electrical isolation and
processing of analog 0(4) to 20 mA standard current signals. The AIMI0202
provides electrical isolation between the control electronics and process I/O. In
addition, interference signals above 75 Hz are effectively suppressed.
Input and output circuit do not require separate auxiliary power. The
AIMI0202 obtains power from the input signal. The modules are snapped onto
symmetrical DIN rails in accordance with EN 50 022.
VOLTAGE DROP AT INPUT
When using the AIMI0202, ensure that the current-driving voltage of the
measuring transducer is sufficient for driving the maximum current of 20 mA,
with a power loss of 2.5 V (2.5 V + (20 mA * RLOAD).
Voltage drop across the input is calculated by determining the load resistance
of the output loop, drawing a vertical line to the curve, then horizontally to the
voltage drop.
WIRING CONNECTIONS
Connect transducer to input (Terminals 1 & 2), observing polarity. A power
supply may be required for loop powered transducers.
The energy for the supply on the input side is taken from the analog input
signal. Due to the dynamic input resistance, a power loss of approximately 2.5
V drops at the module input.
DIMENSIONS In inches (mm)
ORDERING INFORMATION
0020040060080001
UE
B
R /
0
5
10
15
20
25
UV = 2.5 V
/ V
Ω
0 (4)-20 mA0 (4)-20 mAAIMI
OUTPUT
INPUT
MODEL NO.
AIMI0202
PART NUMBER

759
H
1-717-767-6511
zPROTECTS AGAINST PHASE LOSS, UNBALANCE, UNDER
VOLTAGE, AND PHASE REVERSAL
zAVAILABLE IN 230, 380, OR 480 VAC
zLOW COST
zDIN RAIL MOUNTABLE
zINRUSH UNDER VOLTAGE DELAY
DESCRIPTION
The APMR protects three phase equipment, mostly motors, from destructive
line conditions. Specifically it detects Phase Reversal, Phase Loss, Phase
Unbalance and Low Voltage. All of these conditions, except for Phase Reversal,
produce excessive heating of motor windings, causing immediate or cumulative
damage to the motor. Phase Reversal will cause a motor to operate in the reverse
intended direction, possibly damaging machinery.
There are three models available; 230 VAC, 380 VAC, and 480 VAC. The
230 VAC model is used with 208, 220, 230, and 240 VAC rated equipment. The
380 VAC model is used with 380 and 415 VAC (European) equipment. The 480
VAC model is used with 440, 460, and 480 VAC rated equipment. The
electrical connection is three wire Delta or WYE configurations (no neutral
connection required).
The output is SPDT relay and LED. The relay is typically connected in series
with a motor contactor coil to inhibit motor start or to disconnect the motor in
the presence of a fault condition. The relay automatically resets when the fault
clears. The relay is typically used in a latching configuration so the motor has
to be restarted after the fault is cleared. The LED illuminates green when all
conditions are normal - no fault. When the LED is green, the relay is energized.
When a fault occurs, the LED turns red and the relay is de-energized. If phase
loss occurs on L1 or L3 the LED turns-off and the relay is de-energized.
SAFETY SUMMARY
All safety related regulations, local codes and instructions that appear in the
manual or on equipment must be observed to ensure personal safety and to
prevent damage to either the instrument or equipment connected to it. If
equipment is used in a manner not specified by the manufacturer, the protection
provided by the equipment may be impaired.
SPECIFICATIONS
1. POWER:
230 VAC: 185 min to 264 max, 3 VA (Typ)⇒Nominal is 185 to 240, 48 to 62 Hz.
380 VAC: 320 min to 457 max, 3 VA (Typ)⇒Nominal is 320 to 415, 48 to 62 Hz.
480 VAC: 380 min to 528 max, 3 VA (Typ)⇒Nominal is 380 to 480, 48 to 62 Hz.
2. OUTPUT: SPDT 10 A @ 240 VAC (resistive load); 1/2 HP @ 240 VAC
Response Time:
Phase Reversal: Not greater than 120 msec
Low Voltage: 0.1 to 20 sec, user adjustable
Phase Loss and Unbalance: Not greater than 100 ms
3. TEMPERATURE COEFFICIENTS:
Unbalance: ±0.5% Over temperature range
Undervoltage: ±200 PPM/°C
4. ENVIRONMENTAL CONDITIONS:
Operating Temperature: 0 to 55°C
Storage Temperature: -40 to 80°C
Operating and Storage Humidity: 85% max. relative humidity (non-
condensing) from 0°C to 50°C.
Altitude: Up to 2000 meters
5. ISOLATION BREAKDOWN RATING: 3000 V
6. CERTIFICATIONS AND COMPLIANCES:
SAFETY
UL Recognized Component, File # E137808, UL 508, CSA C22.2 No. 14
Recognized to U.S. and Canadian requirements under the Component
Recognition Program of Underwriters Laboratories, Inc.
IEC 61010-1, EN 61010-1: Safety requirements for electrical equipment
for measurement, control, and laboratory use, Part 1.
ELECTROMAGNETIC COMPATIBILITY
Refer to EMC Installation Guidelines for additional information.
7. MOUNTING: Universal mounting foot for attachment to standard DIN style
mounting rails, including top hat (T) profile rail according to EN50022 - 35
X 7.5 and 35 X 15, and G profile rail according to EN50035 - G32.
8. CONNECTION: Compression type terminal block
9. CONSTRUCTION: High impact black plastic case. Installation Category II,
Pollution Degree 2.
10. WEIGHT: 7.0 oz. (0.20 Kg)
MODEL APMR - 3 PHASE FAULT DETECTION DIN RAIL MODULE
CAUTION: Risk of Danger.
Read complete instructions prior to
installation and operation of the unit.
CAUTION: Risk of electric shock.
DIMENSIONS In inches (mm)
Enclosure class AEN 55011RF interference
Emissions to EN 50081-2
Level 3; 10 V/mENV 50204
150 KHz - 80 MHz
Level 3; 10 V/rms EN 61000-4-6RF conducted interference
Level 3; 2 Kv power
Level 4; 2 Kv I/O EN 61000-4-4Fast transients (burst)
80 MHz - 1 GHz
Level 3; 10 V/m EN 61000-4-3Electromagnetic RF fields
Level 3; 8 Kv air
Level 2; 4 Kv contact EN 61000-4-2Electrostatic discharge
200 Hz, 50% duty cycle
Immunity to EN 50082-2
900 MHz ± 5 MHz
WARNING: 3 Phase Fault Detection Modules must never be used as
“Primary” protection against hazardous operating conditions. Machinery
must first be made safe by inherent design or the installation of guards,
shields, or other devices to protect personnel in the event of a hazardous
machine condition.
Simulation of cordless telephone
UL Recognized Component,
File # E137808

760
H
www.redlion.net
5. In extremely high EMI environments, the use of external EMI suppression
devices, such as ferrite suppression cores, is effective. Install them on Signal
and Control cables as close to the unit as possible. Loop the cable through the
core several times or use multiple cores on each cable for additional protection.
Install line filters on the power input cable to the unit to suppress power line
interference. Install them near the power entry point of the enclosure. The
following EMI suppression devices (or equivalent) are recommended:
Ferrite Suppression Cores for signal and control cables:
Fair-Rite # 0443167251 (RLC #FCOR0000)
TDK # ZCAT3035-1330A
Steward #28B2029-0A0
Line Filters for input power cables:
Schaffner # FN610-1/07 (RLC #LFIL0000)
Schaffner # FN670-1.8/07
Corcom #1VB3
Corcom #1VR3
Note: Reference manufacturer’s instructions when installing a line filter.
6. Long cable runs are more susceptible to EMI pickup than short cable runs.
Therefore, keep cable runs as short as possible.
WIRING CONNECTIONS
All conductors should meet voltage
and current ratings for each terminal.
Also, cabling should conform to
appropriate standards of good
installation, local codes and regulations.
It is recommended that power supplied to
the unit be protected by a fuse or circuit
breaker. When wiring the unit, use the
number on the label to identify the
position number with the proper
function. Strip wire, leaving
approximately 1/4" (6mm) of bare wire
exposed. Insert the wire into the terminal,
and tighten the screw until the wire is
clamped tightly.
FUNCTION DESCRIPTIONS
PHASE UNBALANCE
Unbalance occurs in 3 phase systems when single phase loads are added
without regard to voltage effects on the remaining phases. This unbalance in
phase voltage causes excessive motor current producing temperatures in excess
of specifications. The relationship between voltage unbalance and percentage
of temperature rise is approximately the square of the percent voltage
unbalance times two. ie., - % temperature rise = (% unbalance 2 X 2).
Therefore, a 4% voltage unbalance will result in approximately a 32%
increase in winding temperature. The effect of temperature rise is immediate
failure of winding insulation if unbalance is severe as with single phasing. If
unbalance is slight, gradual winding degradation will result in premature
insulation failure. The APMR will detect slight unbalances that thermal and
magnetic devices usually miss.
PHASE LOSS
Phase Loss is an extreme case of unbalance known as “single phasing”
where a total loss of one of the phases occurs. During this condition the motor
will continue to run and the full current is drawn from the remaining phases.
Unless the motor is lightly loaded motor failure will occur. The APMR will
detect Phase Loss even with regenerated voltages present.
PHASE REVERSAL
Reversing any two of the three phases will cause a motor to rotate opposite
the intended direction causing damage to machinery. Reversal can occur during
maintenance of distribution systems. The APMR will detect Phase Reversal
regardless of load conditions.
UNDERVOLTAGE
Undervoltage can occur during Brownouts, excessive system loading and
motor startups. An undervoltage Time Delay is provided with the undervoltage
detection to eliminate false tripping during startups when a motor draws many
times its operating current.
EMC INSTALLATION GUIDELINES
Although this unit is designed with a high degree of immunity to
ElectroMagnetic Interference (EMI), proper installation and wiring methods
must be followed to ensure compatibility in each application. The type of the
electrical noise, source or coupling method into the unit may be different for
various installations. Cable length, routing and shield termination are very
important and can mean the difference between a successful or a troublesome
installation. Listed below are some EMC guidelines for successful installation
in an industrial environment.
1. The unit should be mounted in a metal enclosure, that is properly connected
to protective earth.
a. If the bezel is exposed to high Electro-Static Discharge (ESD) levels,
above 4 Kv, it should be connected to protective earth. This can be done
by making sure the metal bezel makes proper contact to the panel cut-out
or connecting the bezel screw with a spade terminal and wire to
protective earth.
2. Use shielded (screened) cables for all Signal and Control inputs. The shield
(screen) pigtail connection should be made as short as possible. The
connection point for the shield depends somewhat upon the application.
Listed below are the recommended methods of connecting the shield, in
order of their effectiveness.
a. Connect the shield only at the panel where the unit is mounted to earth
ground (protective earth).
b. Connect the shield to earth ground at both ends of the cable, usually when
the noise source frequency is above 1 MHz.
c. Connect the shield to common of the unit and leave the other end of the
shield unconnected and insulated from earth ground.
3. Never run Signal or Control cables in the same conduit or raceway with AC
power lines, conductors feeding motors, solenoids, SCR controls, and
heaters, etc. The cables should be run in metal conduit that is properly
grounded. This is especially useful in applications where cable runs are long
and portable two-way radios are used in close proximity or if the installation
is near a commercial radio transmitter.
4. Signal or Control cables within an enclosure should be routed as far away as
possible from contactors, control relays, transformers, and other noisy
components.

761
H
1-717-767-6511
SETUP
1. Adjust the dials on the APMR to
the following settings:
a. Under Voltage to minimum
(CCW)
b. Under Voltage Delay to
minimum (CCW)
c. % Unbalanced to maximum
(CW)
2. Connect input wire from the
fused 3 phase line voltage to
Terminals 7 (L1), 9 (L2), and 11
(L3). In Wye systems,
connection to neutral wire is not
required. Do not wire output
contacts until Step 9.
3. TURN POWER ON. When the internal relay energizes, and the Red LED
glows green, the phase sequence is correct and the voltages on all three
phases are above the minimum under voltage setting.
a. If the internal output relay does not energize, and the LED stays red, TURN
POWER OFF and swap any two (2) of the three (3) input wires. This
corrects the phase sequence if the monitor was connected in reverse rotation.
Note: Insure that the motor is wired for correct rotation.
4. Select the proper under voltage trip point. (This is the dial marked Under
Voltage.) The under voltage setting should be the same as the minimum
operating voltage for the equipment to be protected.
Note: If the recommended setting is not known, turn the Undervoltage
adjustment knob CW until the relay de-energizes and the LED glows red.
Turn the knob CCW until the relay energizes and the LED glows green.
This procedure assumes that the line voltages are at an acceptable level
when the adjustments are made.
5. Set the Under Voltage Delay to the desired value. This is the maximum time
period that an under voltage condition can exist before de-energizing the
internal relay. The exact value of the delay depends on the type of equipment
being protected and the quality of the available three phase power. A setting
too low, will cause unnecessary interruptions due to momentary dips in the
line voltage. On the other hand, if the time delay is too long, damage to the
equipment can occur before a legitimate under voltage condition is detected.
Three phase motors have a starting current that is many times higher than
the normal full load current but lasts for only a few seconds. Setting the
delay slightly longer than the duration of this inrush period will prevent the
APMR from being tripped due to a low voltage condition caused by the
starting current.
Note: The under voltage delay applies only to under voltage conditions.
Exceeding the phase unbalance trip setting or a phase loss will de-
energize the relay instantly regardless of the delay setting.
6. Phase Unbalance setting. Maximum permissible unbalance and phase
voltages that most three phase powered equipment can tolerate are very
seldom specified. In most locations, three phase voltages typically are not
perfectly balanced. Use your own discretion when setting this value. Too low
of a setting (CCW) can cause unnecessary tripping. Too high of a setting
(CW) does not provide adequate protection.
An alternative procedure is to turn the Unbalance adjustment CCW until the
relay de-energizes and the LED turns red. Turn the knob CW until the relay
energizes and the LED turns green.
Note: This procedure assumes that the line voltages are sufficiently balanced
when the adjustments are made. % Voltage Unbalance is defined by NEMA
as: [(Maximum Deviation From Average Voltage/Average Voltage) X 100]
where Average Voltage = (L1 + L2 + L3)/3.
Note: NEMA recommends not to operate motors with a phase unbalance
greater than 5%.
7. When the phase sequence is correct and the line voltages are within preset
limits, the internal relay of the APMR will energize. The LED indicator
glows green to show a normal condition.
8. TURN POWER OFF. Refer to the wiring diagram for proper output contact
connections.
9. After proper connections are made, TURN POWER ON. The internal relay
energizes allowing the monitored load to become active.
G Rail Installation
To install the APMR on
a “G” style DIN rail,
angle the module so that
the upper groove of the
“foot” catches under the
lip of the top rail. Push the
module toward the rail
until it snaps into place.
To remove a module from
the rail, push up on the
bottom of the module
while pulling out away
from the rail.
T Rail Installation
To install the APMR on a
“T” style rail, angle the
module so that the top
groove of the “foot” is
located over the lip of the
top rail. Push the module
toward the rail until it snaps
into place. To remove a
module from the rail, insert
a screwdriver into the slot on
the bottom of the “foot”, and
pry upwards on the module
until it releases from the rail.
INSTALLATION
The unit is equipped with a universal mounting foot for attachment to standard DIN style
mounting rails, including G profile rail according to EN50035 - G32 , and top hat (T) profile rail
according to EN50022 - 35 x 7.5 and 35 x 15.
The unit should be installed in a location that does not exceed the maximum operating
temperature and provides good air circulation. Placing the unit near devices that generate
excessive heat should be avoided.

762
H
www.redlion.net
APPLICATION
A waste water treatment
plant had just completed a
costly repair program,
reconditioning several motors used in their pumping
process. The necessity to rebuild was the direct result
of unbalanced and low voltage supply lines causing
excessive heating to the motor windings. The
continual operation below acceptable levels of power
supply lead to the failure of the motor windings. The
APMR (3 phase fault detector) was included in the
repair program. This upgrade to the system will
automatically shut down the motors if an undesirable
power supply condition is detected. Not only is this a
safeguard against unbalance or low voltage, it will
also detect phase loss or reversal. An alarm will also
trigger in the control room, alerting the operators of
the shut down action.
ORDERING INFORMATION
TROUBLESHOOTING
For further technical assistance, contact technical support at the appropriate company numbers listed.
DESCRIPTION
APMR 3 Phase Fault Detection Module
MODEL NO.
PART NUMBERS FOR
AVAILABLE SUPPLY VOLTAGES
230 VAC
APMR0016
380 VAC
APMR0086
For more information on Pricing, Enclosures & Panel Mount Kits refer to the RLC Catalog or contact your
local RLC distributor.
480 VAC
APMR0096

763
H
1-717-767-6511
SAFETY SUMMARY
All safety related regulations, local codes and instructions that appear in the
manual or on equipment must be observed to ensure personal safety and to
prevent damage to either the instrument or equipment connected to it. If
equipment is used in a manner not specified by the manufacturer, the protection
provided by the equipment may be impaired.
SPECIFICATIONS
1. POWER: 12 to 42 VDC *(Loop powered). The power supply must have a
30 mA min. capacity.
[* Min. voltage must be increased to include the drop across any current
display indicator]
2. INPUT: RTD 2, 3, or 4 wire, 100 ohm platinum, alpha=0.00385 (DIN
43760), alpha=0.00392, or resistance [selectable via DIP switch]
Excitation: 0.170 mA nominal
Lead resistance: Less than 0.5°C with 15 ohms max. per lead
Note: There is no lead compensation for 2 wire input. Field calibration
should be accomplished with equivalent series resistance.
3. OUTPUT: 4 to 20 mA Linear output with Temperature or resistance input.
Ripple: Less than 15 mV peak-to-peak max., across 250Ωload resistor (up
to 120 Hz frequencies).
4. RANGE & ACCURACY: (12 Bit resolution)
Accuracy: ± ( 0.075% Range + 0.1°C [Conformity]) at 23°C after 20 min.
warm-up, conforming to ITS-90.
Note: RTD conformity does not apply to resistance input.
Relative Humidity: Less than 85% RH (non-condensing)
Span: The input span can be set to a min. of 1/8 of the full scale range,
anywhere within that range.
Range Accuracy:
Note: DIP switch settings ON = 1 OFF = 0
RTD alpha = 0.00392
USER PROGRAMMABLE INPUT
(RTD alpha=0.00385 (DIN 43760), alpha=0.00392, or resistance)
12 to 42 VDC LOOP POWERED (4 to 20 mA Output)
MICROPROCESSOR CONTROLLED
SIMPLE ADJUSTABLE RANGE SETTING (Using Input Signal)
RTD BREAK DETECTION
MOUNTS ON “T” AND “G” STYLE DIN RAILS
2-WAY ELECTRICAL ISOLATION (INPUT/OUTPUT & POWER)
HIGH-DENSITY PACKAGING (22.5 mm wide)
WIDE OPERATING TEMPERATURE RANGE
DESCRIPTION
The IRMA accepts a 2, 3, or 4 wire RTD or resistance input and converts it
into a 4 to 20 mA current output. The 4 to 20 mA output is linearly proportional
to the temperature or the resistance input. This output is ideal for interfacing to
indicators, chart recorders, controllers, or other instrumentation equipment.
The IRMA is loop-powered which means that the same two wires are
carrying both the power and the output signal. The unit controls the output
current draw from 4 to 20 mA in direct proportion to the input while consuming
less than 4 mA for operation. The conversion to a current output signal makes
the IRMA less susceptible to noise interference and allows accurate
transmission over long distances. Two-Way isolation allows the use of
grounded RTD’s which can provide additional noise reduction benefits.
The IRMA uses an eight position DIP switch to accomplish the input sensor
configuration, range selection, and unit calibration. A simple range setting
technique (Field Calibration) is used so the actual input signal adjusts the output
current for scaling. This technique eliminates the need for potentiometers which
are vulnerable to changes due to vibration.
The unit is equipped with a universal mounting foot for attachment to
standard DIN style mounting rails, including top hat rail (T) according to EN
50 022 - 35 X 7.5 and 35 X 15, and G profile according to EN 50 035 - G 32.
MODEL IRMA - INTELLIGENT RTD MODULE WITH ANALOG OUTPUT
DIMENSIONS In inches (mm)
INPUT RANGE
DIP SWITCH
TYPE RANGE
4 6 7 8
TEMPERATURE &
OHMS RANGE
RANGE
ACCURACY
00 0 0 0 -160 to 654°C ±0.61°C
10 0 0 1 -108 to 207°C ±0.24°C
20 0 1 0 -5 to 414°C ±0.31°C
RTD alpha = 0.00385
30 0 1 1 194 to 608°C ±0.31°C
00 1 0 0 35.5 to 331.0 Ω±0.222 Ω
10 1 0 1 57.0 to 178.5 Ω±0.091 Ω
20 1 1 0 98.0 to 252.0 Ω±0.116 Ω
OHMS
30 1 1 1 173.5 to 316.5 Ω±0.107 Ω
01 0 0 0 -157 to 640°C ±0.60°C
11 0 0 1 -106 to 203°C ±0.23°C
21 0 1 0 -5 to 406°C ±0.31°C
31 0 1 1 190 to 596°C ±0.30°C
CAUTION: Risk of Danger.
Read complete instructions prior to
installation and operation of the unit.
MODEL NO. DESCRIPTION PART NUMBER
IRMA Intelligent RTD Module IRMA2003
ORDERING INFORMATION

764
H
www.redlion.net
FUNCTION DESCRIPTIONS
Open Sensor Detection
The output can be set to go Upscale or Downscale for the detection of an
open sensor. The Upscale setting makes the output go to 22.5 mA (nominal).
The Downscale setting makes the output go to 3.5 mA (nominal). This setting
is always active, so changes in the setting are effective immediately.
Calibration Malfunction
If the unit has scaling problems (current remains at 3.5 mA nominal), check
the voltage between the RTD- Input (-) and TEST pad (+) [located next to the
DIP switches on the side of the unit]. For normal operation the voltage is 0 V
(nominal). If the voltage is +3 V(nominal), a problem occurred storing
information in the E2PROM. When this happens, perform a Basic Calibration
and then a Field Calibration. Turn off power for 5 seconds. Turn on power and
check the voltage between the TEST pad (+) and RTD- Input (-). If the voltage
is still +3 V(nominal), contact the factory.
EMC INSTALLATION GUIDELINES
Although this unit is designed with a high degree of immunity to
ElectroMagnetic Interference (EMI), proper installation and wiring methods
must be followed to ensure compatibility in each application. The type of
electrical noise, source or coupling method into the unit may be different for
various installations. In extremely high EMI environments, additional measures
may be needed. For the purpose of EMC testing, both input and output lines on
the unit were connected with 25 feet (8 m) of cable. Cable length, routing and
shield termination are very important and can mean the difference between a
successful or a troublesome installation. Listed below are some EMC guidelines
for successful installation in an industrial environment.
1. Use shielded (screened) cables for all Signal and Control inputs. The shield
(screen) pigtail connection should be made as short as possible. The
connection point for the shield depends somewhat upon the application.
Listed below are the recommended methods of connecting the shield, in order
of their effectiveness.
a. Connect the shield only at the rail where the unit is mounted to earth
ground (protective earth).
b. Connect the shield to earth ground at both ends of the cable, usually when
the noise source frequency is above 1 MHz.
c. Connect the shield to common of the unit and leave the other end of the
shield unconnected and insulated from earth ground.
2. Never run Signal or Control cables in the same conduit or raceway with AC
power lines, conductors feeding motors, solenoids, SCR controls, and
heaters, etc. The cables should be run in metal conduit that is properly
grounded. This is especially useful in applications where cable runs are long
and portable two-way radios are used in close proximity or if the installation
is near a commercial radio transmitter.
3. Signal or Control cables within an enclosure should be routed as far away as
possible from contactors, control relays, transformers, and other noisy
components.
4. In extremely high EMI environments, the use of external EMI suppression
devices, such as ferrite suppression cores, is effective. Install them on Signal
and Control cables as close to the unit as possible. Loop the cable through the
core several times or use multiple cores on each cable for additional
protection. Install line filters on the power input cable to the unit to suppress
power line interference. Install them near the power entry point of the
enclosure. The following EMI suppression devices (or equivalent) are
recommended:
Ferrite Suppression Cores for signal and control cables:
Fair-Rite # 0443167251 (RLC #FCOR0000)
TDK # ZCAT3035-1330A
Steward #28B2029-0A0
Line Filters for input power cables:
Schaffner # FN610-1/07 (RLC #LFIL0000)
Schaffner # FN670-1.8/07
Corcom #1VR3
Note: Reference manufacturer’s instructions when installing a line filter.
5. Long cable runs are more susceptible to EMI pickup than short cable runs.
Therefore, keep cable runs as short as possible.
SPECIFICATIONS (Cont’d)
5. SENSOR BREAK DETECTION: Upscale to 22.5 mA (nominal) or
Downscale to 3.6 mA (nominal) [selectable via DIP switch]
6. RESPONSE TIME: 400 msec (to within 99% of final value w/step input;
typically, response is limited to response time of probe.)
7. DIELECTRIC WITHSTAND VOLTAGE: 1500 VAC for 1 minute
Working Voltage: 50 VAC from input to output.
8. CERTIFICATIONS AND COMPLIANCES:
SAFETY
IEC 61010-1, EN 61010-1: Safety requirements for electrical equipment
for measurement, control, and laboratory use, Part 1.
ELECTROMAGNETIC COMPATIBILITY
Notes:
1. This device was designed for installation in an enclosure. To avoid
electrostatic discharge, precautions should be taken when the device is
mounted outside an enclosure. When working in an enclosure, (ex.
making adjustments, setting switches etc.) typical anti-static precautions
should be observed before touching the device.
2. Self-recoverable loss of performance during EMI disturbance at 10 V/m:
Analog output signal may deviate during EMI disturbance.
For operation without loss of performance:
Unit is mounted in a metal enclosure (Buckeye SM7013-0 or equivalent).
I/O and power cables are routed in metal conduit connected to earth
ground.
9. ENVIRONMENTAL CONDITIONS:
Operating Temperature Range: -25°C to 75°C (-13°F to 167°F)
Storage Temperature Range: -40°C to 85°C (-40°F to 185°F)
Temperature Coefficient: ± 0.01% of input range per °C
Altitude: Up to 2000 meters.
10. MOUNTING: Universal mounting foot for attachment to standard DIN
style mounting rails, including top hat (T) profile rail according to EN50022 -
35 x 7.5 and 35 x 15, and G profile rail according to EN50035 - G32.
11. CONNECTION: Compression type terminal block
12. CONSTRUCTION: High impact green plastic case
13. WEIGHT: 2.7 oz (76.54 g)
Immunity to EN 50082-2
Power frequency magnetic fields EN 61000-4-8 Level 4; 30 A/m
Electrostatic discharge EN 61000-4-2 Level 2; 4 Kv contact 1
Level 3; 8 Kv air
Electromagnetic RF fields EN 61000-4-3 Level 3; 10 V/m 2
80 MHz - 1 GHz
Fast transients (burst) EN 61000-4-4 Level 4; 2 Kv I/O
Level 3; 2 Kv power
RF conducted interference EN 61000-4-6 Level 3; 10 V/rms
150 KHz - 80 MHz
Emissions to EN 50081-2
RF interference EN 55011 Enclosure class A
BLOCK DIAGRAM

765
H
1-717-767-6511
WIRING CONNECTIONS
All conductors should meet
voltage and current ratings for each
terminal. Also, cabling should
conform to appropriate standards of
good installation, local codes and
regulations. It is recommended that
power supplied to the unit be
protected by a fuse or circuit
breaker. When wiring the unit, use
the numbers on the label to identify
the position number with the proper
function. Strip the wire, leaving
approximately 1/4" (6 mm) of bare
wire exposed (stranded wire should
be tinned with solder). Insert the
wire into the terminal, and
tighten the screw until the
wire is clamped tightly.
INPUT AND POWER/OUTPUT CONNECTIONS
INPUT
When connecting the RTD or resistance device, be certain that the
connections are clean and tight. Attach the device to terminals #2 and #3. Install
a copper sense lead of the same gauge as those used to connect the device.
Attach one end of the wire at the probe where the lead connected to terminal #2
is attached and the other end to terminal #1. This configuration will provide
complete lead wire compensation. If a sense wire is not utilized, then Terminal
#1 should be shorted to terminal #2. To avoid errors due to lead wire resistance,
field calibration should be performed with a series resistance equal to the total
lead resistance in the system. Always refer to the probe manufacturer’s
recommendations for mounting, temperature range, shielding, etc.
POWER/OUTPUT
The unit has the power and current output sharing the same two wires (loop-
powered). Connect DC power to terminals #4 and #5, observing the correct
polarity, with a current meter/indicator connected in between so that the output
current can be monitored. Be certain that the DC power is relatively “clean”
and within the 12 to 42 VDC range at the terminals. The current meter voltage
drop must be included in the power supply considerations.
DIP SWITCH SETTING DESCRIPTIONS
Range switch settings (ON = 1 OFF = 0)
FACTORY SETTINGS
The unit is shipped from the factory calibrated for a 4 to 20 mA output using
a type 385 RTD in range 0. The IRMA should be calibrated by the operator for
the application environment it will be used in. If the unit is not recalibrated by
the operator, the following table lists the temperature ranges for each RTD type.
SWITCH DESCRIPTION
1OUTPUT CAL Output Calibration
2FIELD CAL Field Calibration
3BASIC CAL Basic Calibration
4385/392 Select RTD alpha - 0.00392 (ON) /
0.00385 (OFF)
5OPEN SEN DN/UP Open Sensor Detection -
Upscale (ON) / Downscale (OFF)
6RTD/OHMS Select Input Type -
Ohms (ON) / RTD (OFF)
7
8RANGE Sensor Range - 2 switch
combination setting
DIP SWITCH
RANGE 7 8
0 0 0
1 0 1
2 1 0
3 1 1
150°C to 595°C
0392
150°C to 606°C
0385
TEMPERATURE RANGERANGETYPE

766
H
www.redlion.net
Field Calibration with an Accurate Adjustable Resistance Source
1.1 Connect an Adjustable Resistance Source with an accuracy of 0.03% to the RTD
input terminals using a third sense wire.
For 2 wire sensors short terminal #1 to terminal #2.
1.2 Set the Type and Range for the RTD or resistance used in your application (DIP
switches #4, #6, #7 and #8). (RTD alpha=0.00385, Range 0 shown)
1.3 Set the FIELD CAL switch (#2) ON. [Current goes to 3.6 mA (nominal)]
1.4 Set the resistance source to the desired resistance for the 4 mA output. For 2 wire
sensors add the system lead resistance to the desired value.
1.5 Set the OUTPUT CAL switch (#1) ON. [Current stays at 3.6 mA (nominal)]
1.6 Adjust the input resistance up until the output equals 4 mA.
1.7 Set the OUTPUT CAL switch (#1) OFF. [Current increases to 22.3 mA (nominal)]
1.8 Set the resistance source to the desired resistance for the 20 mA output. For 2 wire
sensors add the system lead resistance to the desired value.
1.9 Set the OUTPUT CAL switch (#1) ON. [Current decreases to 20.5 mA (nominal)]
1.10 Adjust the input resistance down until the output equals 20 mA.
1.11 Set the OUTPUT CAL switch (#1) OFF.
1.12 Set the FIELD CAL switch (#2) OFF.
1.13 Disconnect the resistance source from the IRMA and connect the actual sensor to
be used in the application.
Step 1.11
Step 1.12
Step 1.2
Step 1.3
Step 1.5
Step 1.7
Step 1.9
Field Calibration Wiring
Allow a 30 minute warm-up period before starting Field Calibration. Field
Calibration scales the 4 to 20 mA output to a temperature or resistance input.
This procedure assigns an input value to 4 mA and an input value to 20 mA. The
microprocessor handles configuring the output so it is linear to the temperature
or resistance input. The Field Calibration procedure is described below.
Note: The unit needs to have the Field Calibration completed by the operator
before normal operation. To abort this calibration and reset to the previous
settings, set the FIELD CAL switch OFF prior to the final OFF setting of the
OUTPUT CAL switch (Step 1.11) and turn off power. Wait 5 seconds and then
turn on power and the previous settings will be loaded.
RTD temperature to resistance conversion table
CALIBRATION PROCEDURES
1.0 Field Calibration
Temperature
°°C
alpha
0.00385 ohms
Temperature
°C
alpha
0.00385 ohms
alpha
0.00392 ohms
-160
alpha
0.00392 ohms
35.53 300 212.03 214.08
-150
34.38
39.71 350 229.69 232.07
-100 60.25
38.64
400 247.05 249.77
-50 80.30
59.55
410 250.49 253.28
0
79.96
100.00 450 264.13 267.18
50 119.40
100.00
500 280.92119.75 284.30
100 138.5 139.20 550 297.42 301.13
150 157.33 158.36 590 310.41 314.38
190 172.17 173.48 600 313.63 317.66
200 175.85 177.23 640 326.38 330.68
250 194.09 195.80 650 329.54 333.90

767
H
1-717-767-6511
Step 2.1
Steps 2.3 to 2.15
Step 2.16
2.0 Basic Calibration (Factory Calibration)
Basic Calibration Wiring
The Basic Calibration should only be performed with an ambient temperature between
21°C and 29°C. The Basic Calibration was performed on the unit at the factory and
generally does not need to be done again. This procedure initializes the unit by
calibrating the input circuitry. The Basic Calibration should be performed only if a
condition exists as described in the “Calibration Malfunction” section. After completion
of this calibration, the unit needs to be scaled in Field Calibration. The Basic Calibration
procedure is described below.
Note: To abort this calibration and reset to the previous settings, set the BASIC CAL
switch OFF prior to the final setting of the OUTPUT CAL switch (Step 2.15) and turn
off power for 5 seconds. Then turn on power and the previous settings will be loaded.
2.1 Connect an Adjustable Resistance Source with an accuracy of 0.03% to the RTD
input terminals using a third sense wire. Set the RANGE (#7), TYPE (#4),
OUTPUT CAL (#1), and FIELD CAL (#2) switches OFF. Set the BASIC CAL
switch (#3) ON.
2.2 Apply power and allow a 30 minute warm-up period. [Current goes to 3.5 mA
(nominal)]
2.3 Set the OUTPUT CAL switch (#1) ON and then OFF.
2.4 Set the resistance source to 40 ohms and wait 5 seconds.
2.5 Set the OUTPUT CAL switch (#1) ON and then OFF.
2.6 Set the resistance source to 60 ohms and wait 5 seconds.
2.7 Set the OUTPUT CAL switch (#1) ON and then OFF.
2.8 Set the resistance source to 100 ohms wait 5 seconds.
2.9 Set the OUTPUT CAL switch (#1) ON and then OFF.
2.10 Set the resistance source to 175 ohms and wait 5 seconds.
2.11 Set the OUTPUT CAL switch (#1) ON and then OFF.
2.12 Set the resistance source to 250 ohms and wait 5 seconds.
2.13 Set the OUTPUT CAL switch (#1) ON and then OFF.
2.14 Set the resistance source to 315 ohms and wait 5 seconds.
2.15 Set the OUTPUT CAL switch (#1) ON and then OFF.
2.16 Set the BASIC CAL switch (#3) OFF. [Current increases to 3.6 mA (nominal) or
more]
2.17 Perform a Field Calibration. (See Section 1.0)

768
H
www.redlion.net
APPLICATION
An aluminum manufacturer had the
requirement to heat soak aluminum
ingots before they were to advance into
their hot roll mill. The system is being
controlled by a PLC that allows the
material to move to the next of twelve
zones as soon as the aluminum ingot
reaches the soak temperature. An
IRMA, RTD Loop powered signal
conditioner was used to transmit each
zone temperature, measured by an RTD
sensor, to the PLC. Because the heat
soak procedure was accomplished in an
eighty foot furnace tunnel, a relatively
long wire run was required to connect
each RTD with the PLC. The IRMA
transmitter converts and linearizes the
RTD signal into a 4 to 20 mA signal that
can be run long distances to connect to
the PLC.
TROUBLESHOOTING
For further technical assistance, contact technical support at the appropriate
company numbers listed.
G Rail Installation
To install the
IRMA on a “G” style
DIN rail, angle the
module so that the
upper groove of the
“foot” catches under
the lip of the top rail.
Push the module
toward the rail until it
snaps into place. To
remove a module
from the rail, push up
on the bottom of the
module while pulling
out away from the
rail.
T Rail Installation
To install the IRMA
on a “T” style rail, angle
the module so that the
top groove of the “foot”
is located over the lip of
the top rail. Push the
module toward the rail
until it snaps into place.
To remove a module
from the rail, insert a
screwdriver into the slot
on the bottom of the
“foot”, and pry upwards
on the module until it
releases from the rail.
INSTALLATION
The unit is equipped with a universal mounting foot for attachment to standard DIN style mounting rails,
including G profile rail according to EN50035 - G32 , and top hat (T) profile rail according to EN50022 - 35 x 7.5
and 35 x 15. The unit should be installed in a location that does not exceed the maximum operating temperature and
provides good air circulation. Placing the unit near devices that generate excessive heat should be avoided.

769
H
1-717-767-6511
USER PROGRAMMABLE INPUT
(RTD alpha = 0.00385 (DIN 43760), alpha = 0.00392, or resistance)
MICROPROCESSOR CONTROLLED
SIMPLE ADJUSTABLE RANGE SETTING (Using Input Signal)
RTD BREAK DETECTION
MOUNTS ON “T” AND “G” STYLE DIN RAILS
3-WAY ELECTRICAL ISOLATION (POWER/INPUT/OUTPUT)
MULTIPLE ANALOG OUTPUTS (0 to 20 mA, 4 to 20 mA, and 0 to
10 VDC)
WIDE OPERATING TEMPERATURE RANGE (-25°C to 75°C)
LED INDICATION (POWER & MEMORY ERROR)
9 to 32 VDC POWERED
DESCRIPTION
The IRMA accepts an RTD or resistance input and converts it into a voltage
or current output. The output is linearly proportional to the temperature or
resistance input. This output is ideal for interfacing to indicators, chart
recorders, controllers, or other instrumentation equipment.
The IRMA is DC powered. The DC power input is isolated from the signal
input and analog output. The unit scales the analog output proportionally to the
RTD or resistance input signal. The analog output may be configured for one of
the following: 0 to 20 mA, 4 to 20 mA, or 0 to 10 VDC. Making the signal
conversion with the IRMA to a current output signal, makes the signal less
susceptible to noise interference and allows accurate transmission over long
distances. The 3-Way isolation allows the use of grounded RTD’s which can
provide additional noise reduction benefits.
The IRMA uses an eight position DIP switch to accomplish the input sensor
configuration, range selection, and unit calibration. A simple range setting
technique (Field Calibration) is used so the actual input signal adjusts the output
for scaling. This technique eliminates the need for potentiometers which are
vulnerable to changes due to vibration.
The unit is equipped with a universal mounting foot for attachment to
standard DIN style mounting rails, including top hat rail (T) according to EN 50
022 - 35 ×7.5 and 35 ×15, and (G) profile according to EN 50 035 - G 32.
SAFETY SUMMARY
All safety related regulations, local codes and instructions that appear in the
manual or on equipment must be observed to ensure personal safety and to
prevent damage to either the instrument or equipment connected to it. If
equipment is used in a manner not specified by the manufacturer, the protection
provided by the equipment may be impaired.
SPECIFICATIONS
1. POWER: 9 to 32 VDC; 1.75 W. 200 mA max. current. The power supply
must have 400 mA for 200 msec. surge capacity.
2. INPUT: RTD 2, 3, or 4 wire, 100 ohm platinum, alpha = 0.00385
(DIN 43760), alpha = 0.00392, or resistance [selectable via DIP switches].
Excitation: 0.170 mA nominal
Lead resistance: Less than 0.5°C with 15 ohms max. per lead
Note: There is no lead compensation for 2 wire input. Field calibration
should be performed with equivalent series resistance.
3. OUTPUT: All output signals scaled linearly using temperature or resistance
input. Unit is shipped set for the 4 to 20 mA output. 4 to 20 mA or 0 to 20
mA selected via internal jumper.
Voltage Output Compliance:
0 to 10 VDC across min. 1 KΩload (10 mA)
20 mV peak to peak max. ripple (for frequencies up to 120 Hz)
Current Output Compliance:
0 to 20 mA through max. 600Ωload (12 VDC)
4 to 20 mA through max. 600Ωload (12 VDC)
15 mV peak to peak max. ripple across 600Ωload (for frequencies up to
120 Hz)
4. RTD BREAK DETECTION: Nominal values shown in the following order:
(0 to 20 mA, 4 to 20 mA, and 0 to 10 VDC).
Upscale: 22.9 mA, 22.5 mA, and 11.5 VDC
Downscale: -0.5 mA, 3.5 mA, and -0.4 VDC
5. RESPONSE TIME: 400 msec. (to within 99% of final value w/step input;
typically, response is limited to response time of probe.)
6. TEMPERATURE EFFECTS:
Temperature Coefficient: ±0.025% of input range per °C
7. DIELECTRIC WITHSTAND VOLTAGE: 1500 VAC for 1 minute
Working Voltage: 50 VAC
Power input to Signal input, Power input to Signal output, & Signal input to
Signal output.
MODEL IRMA DC - INTELLIGENT RTD MODULE WITH ANALOG OUTPUT
DIMENSIONS In inches (mm)
CAUTION: Read complete instructions prior
to installation and operation of the unit.
MODEL NO. DESCRIPTION PART NUMBER
IRMA Intelligent RTD Module IRMA3035
ORDERING INFORMATION

770
H
www.redlion.net
8. RANGE & ACCURACY: (12 Bit resolution)
Accuracy: ±( 0.075% Range + 0.1°C [Conformity]) at 23°C after 45 min.
warm-up, conforming to ITS-90.
Note: RTD Conformity does not apply to resistance input. For best accuracy,
calibration should be performed under operating conditions.
Relative Humidity: Less than 85% RH (non-condensing)
Span: The input span can be set to a min. of 1/8 of the full scale range,
anywhere within that range.
Range Accuracy
9. CERTIFICATIONS AND COMPLIANCES:
SAFETY
IEC 1010-1, EN 61010-1: Safety requirements for electrical equipment for
measurement, control, and laboratory use, Part 1.
ELECTROMAGNETIC COMPATIBILITY
Notes:
1. This device was designed for installation in an enclosure. To avoid
electrostatic discharge, precautions should be taken when the device is
mounted outside an enclosure. When working in an enclosure (ex. making
adjustments, setting switches etc.) typical anti-static precautions should
be observed before touching the unit.
2. Self-recoverable loss of performance during EMI disturbance at 10 V/m:
Analog output signal may deviate during EMI disturbance.
For operation without loss of performance:
Unit is mounted in a metal enclosure (Buckeye SM7013-0 or equivalent)
I/O and power cables are routed in metal conduit connected to earth ground.
Refer to the EMC Installation Guidelines section of this bulletin for
additional information.
10. ENVIRONMENTAL CONDITIONS:
Operating Temperature Range: -25°C to 75°C (-13°F to 167°F)
Storage Temperature Range: -40 to 85°C (-40°F to 185°F)
Operating and Storage Humidity: 85% max. relative humidity (non-
condensing) from -25°C to 75°C.
Altitude: Up to 2000 meters
11. MOUNTING: Universal mounting foot for attachment to standard DIN
style mounting rails, including top hat (T) profile rail according to EN50022
- 35 ×7.5 and 35 ×15, and G profile rail according to EN50035 - G32.
12. CONNECTION: Compression type terminal block
13. CONSTRUCTION: High impact black plastic case, Installation Category
I, Pollution Degree 2.
14. WEIGHT: 4.02 oz. (114.0 g)
FUNCTION DESCRIPTIONS
Open Sensor Detection
The output can be set to go Upscale or Downscale for the detection of an
open sensor. The nominal values for each output range are listed under RTD
Break Detection in the Specifications section. This setting is always active, so
changes to the setting are effective immediately.
Unit Malfunction
If the unit has scaling problems (output remains at -0.5 mA, 3.5 mA, or -0.5
VDC nominal), check the ERROR LED on the front of the unit. An E2PROM
problem is indicated when the ERROR LED is on. If the ERROR LED is on,
perform a Basic Calibration followed by a Field Calibration. Turn the power off
for 5 seconds. Turn power on and check if the ERROR LED is on. If the LED
is on, contact the factory.
EMC INSTALLATION GUIDELINES
Although this unit is designed with a high degree of immunity to
ElectroMagnetic Interference (EMI), proper installation and wiring methods
must be followed to ensure compatibility in each application. The type of the
electrical noise, source or coupling method into the unit may be different for
various installations. Cable length, routing and shield termination are very
important and can mean the difference between a successful or a troublesome
installation. Listed below are some EMC guidelines for successful installation
in an industrial environment.
1. Use shielded (screened) cables for all Signal and Control inputs. The shield
(screen) pigtail connection should be made as short as possible. The
connection point for the shield depends somewhat upon the application.
Listed below are the recommended methods of connecting the shield, in
order of their effectiveness.
a. Connect the shield only at the rail where the unit is mounted to earth
ground (protective earth).
b. Connect the shield to earth ground at both ends of the cable, usually when
the noise source frequency is above 1 MHz.
c. Connect the shield to common of the unit and leave the other end of the
shield unconnected and insulated from earth ground.
2. Never run Signal or Control cables in the same conduit or raceway with AC
power lines, conductors feeding motors, solenoids, SCR controls, and
heaters, etc. The cables should be run in metal conduit that is properly
grounded. This is especially useful in applications where cable runs are long
and portable two-way radios are used in close proximity or if the installation
is near a commercial radio transmitter.
3. Signal or Control cables within an enclosure should be routed as far away as
possible from contactors, control relays, transformers, and other noisy
components.
4. In extremely high EMI environments, the use of external EMI suppression
devices, such as ferrite suppression cores, is effective. Install them on Signal
and Control cables as close to the unit as possible. Loop the cable through the
core several times or use multiple cores on each cable for additional protection.
Install line filters on the power input cable to the unit to suppress power line
interference. Install them near the power entry point of the enclosure. The
following EMI suppression devices (or equivalent) are recommended:
Ferrite Suppression Cores for signal and control cables:
Fair-Rite # 0443167251 (RLC #FCOR0000)
TDK # ZCAT3035-1330A
Steward #28B2029-0A0
Line Filters for input power cables:
Schaffner # FN610-1/07 (RLC #LFIL0000)
Schaffner # FN670-1.8/07
Corcom #1VR3
Note: Reference manufacturer’s instructions when installing a line filter.
5. Long cable runs are more susceptible to EMI pickup than short cable runs.
Therefore, keep cable runs as short as possible.
BLOCK DIAGRAM
Enclosure class B
Level 4; 30 A/m
Level 4; 2 kV I/O
Level 3; 2 kV power
150 KHz −80 MHz
Level 3; 10 V/rms
EN 55011
EN 61000-4-8
EN 61000-4-4
EN 61000-4-6
RF interference
Emission to EN 50081-2
Power frequency magnetic fields
Fast transients (burst)
RF conducted interference
80 MHz - 1 GHz
Level 3; 10 V/m2
EN 61000-4-3Electromagnetic RF fields
EN 61000-4-2
Immunity to EN 50082-2
Electrostatic discharge
Level 3; 8 kV air
Level 2; 4 kV contact1
INPUT RANGE
DIP SWITCH
TYPE RANGE
4 6 7 8
TEMPERATURE
& OHMS RANGE
RANGE
ACCURACY
00 0 0 0 -160 to 654°C ±0.61°C
10 0 0 1 -108 to 207°C ±0.24°C
20 0 1 0 -5 to 414°C ±0.31°C
RTD alpha = 0.00385
30 0 1 1 194 to 608°C ±0.31°C
01 0 0 0 -157 to 640°C ±0.60°C
11 0 0 1 -106 to 203°C ±0.23°C
21 0 1 0 -5 to 406°C ±0.31°C
RTD alpha = 0.00392
31 0 1 1 190 to 596°C ±0.30°C
00 1 0 0 35.5 to 331.0 Ω ± 0.222 Ω
10 1 0 1 57.0 to 178.5 Ω ± 0.091 Ω
20 1 1 0 98.0 to 252.0 Ω ± 0.116 Ω
OHMS
30 1 1 1 173.5 to 316.5 Ω ± 0.107 Ω
Total Error
( ±0.61°C + ±0.1°C) = ±0.71°C
Accuracy Example:
RTD 385 Range “0”
-160°C to 654°C
Note: DIP switch settings ON = 1 OFF = 0
ConformityRange

771
H
1-717-767-6511
WIRING CONNECTIONS
All conductors should meet
voltage and current ratings for
each terminal. Also, cabling
should conform to appropriate
standards of good installation,
local codes and regulations. It
is recommended that power
supplied to the unit be
protected by a fuse or circuit
breaker. When wiring the unit,
use the numbers on the label
to identify the position
number with the proper
function. Strip the wire,
leaving approximately 1/4" (6
mm) of bare wire exposed
(stranded wire should be
tinned with solder). Insert the
wire into the terminal, and
tighten the screw until the
wire is clamped tightly.
INPUT AND POWER/OUTPUT CONNECTIONS
INPUT
When connecting the RTD or resistance device, be certain that the
connections are clean and tight. Attach the device to terminals #8 and #9. Install
a copper sense lead of the same gauge as those used to connect the device.
Attach one end of the wire at the probe where the lead connected to terminal #8
is attached and the other end to terminal #7. This configuration will provide
complete lead wire compensation. If a sense wire is not utilized, then Terminal
#7 should be shorted to terminal #8. To avoid errors due to lead wire resistance,
field calibration should be performed with a series resistance equal to the total
lead resistance in the system. Always refer to the probe manufacturer’s
recommendations for mounting, temperature range, shielding, etc.
OUTPUT
Connect the output signal wires to the desired output terminals. For voltage
output, use terminals #4 and #6; for current output, use terminals #1 and #3
observing proper polarity. Only one output may be used at a time. The unit is
factory set for a 4 to 20 mA output. The voltage output will track the current
output linearly within ±2.5% deviation of range endpoints.
To select 0 to 20 mA, output you must open the case and cut the wire jumper.
The jumper is located to the left side of the board as shown in the drawing.
POWER
Connect DC power to terminals #10 and #12 observing proper polarity. Be
certain DC power is within the 9 to 32 VDC specifications.
POWER LED
The IRMA has a green LED located on the front to indicate that power is
applied to the unit.
DIP SWITCH SETTING DESCRIPTIONS
Range switch settings (ON = 1 OFF = 0)
FACTORY SETTINGS
The unit is shipped from the factory calibrated for a 4 to 20 mA output using
a type 385 RTD in range 0. The IRMA should be Field calibrated by the
operator for the application environment it will be used in. If the unit is not
recalibrated by the operator, the following table lists the temperature ranges for
each RTD type.
TROUBLESHOOTING
For further technical assistance, contact technical support at the appropriate
company numbers listed.
SWITCH LABEL DESCRIPTION
1OUTPUT CAL Output Calibration
2FIELD CAL Field Calibration
3BASIC CAL Basic Calibration
4385/392 RTD Type
5OPEN SEN UP/DN Open Sensor Detection -
Upscale (ON) / Downscale (OFF)
6RTD/OHMS Select Input Type -
Ohms (ON) / RTD (OFF)
7
8RANGE Sensor Range - 2 switch
combination setting
DIP SWITCH
RANGE 7 8
0 0 0
1 0 1
2 1 0
3 1 1
TYPE
385
RANGE
0
NOMINAL FACTORY FIELD CALIBRATION
TEMPERATURE RANGE
150°C to 606°C
392 0150°C to 595°C

772
H
www.redlion.net
Field Calibration with an Accurate Adjustable Resistance Source
Note: The nominal output value for the various output ranges are designated in the
following order: (0 to 20 mA, 4 to 20 mA, 0 to 10 VDC)
1.1 Connect resistance source to the RTD input terminals using a third sense wire.
(For 2 wire sensors, short terminal #7 to terminal #8.)
1.2 Set the type and Range for the RTD or resistance used in your application. (DIP
switches #4, #6, #7 & #8). (RTD alpha = 0.00385, Range 0 shown). APPLY
OPERATING VOLTAGE and allow 45 minute warm-up period.
1.3 Set the FIELD CAL switch (#2) ON. [Output goes to -0.8 mA, 3.5 mA, or -0.4 V
nominal]
1.4 Set the input resistance to the value intended to generate the analog low endpoint
(For 2 wire sensors, add the system lead resistance to the desired value.)
1.5 Set the OUTPUT CAL switch (#1) ON. [Output stays at -0.8 mA, 3.5 mA, or -0.4
V nominal]
1.6 Adjust the input signal up until the analog output equals desired low value.[0 mA,
4 mA, or 0 V]
1.7 Set the OUTPUT CAL switch (#1) OFF. [Output increases to 22.9 mA, 22.5 mA,
or 11.5 V nominal]
1.8 Set the input resistance to the value intended to generate the analog high endpoint.
(For 2 wire sensors, add the system lead resistance to the desired value.)
1.9 Set the OUTPUT CAL switch (#1) ON. [Output decreases to 21.1 mA, 20.7 mA,
or 10.6 V nominal]
1.10 Adjust the input signal down until the output equals desired high value. [20 mA,
20 mA, or 10 V]
1.11 Set the OUTPUT CAL switch (#1) OFF.
1.12 Set the FIELD CAL switch (#2) OFF.
1.13 Disconnect the resistance source from the IRMA and connect the actual sensor to
be used in the application.
Field Calibration Wiring
1.0 Field Calibration
CALIBRATION PROCEDURES
Step 1.11
Step 1.12
Step 1.2
Step 1.3
Step 1.5
Step 1.7
Step 1.9
Field Calibration scales the selected output to a temperature or resistance
input. This procedure assigns an input value to the low end and an input value
to the high end. The microprocessor handles configuring the output so it is
linear to the temperature or resistance input. The Field Calibration procedure is
described below.
Note: The unit needs to have the Field Calibration completed by the operator
before normal operation. To abort this calibration and reset to the previous
settings, set the FIELD CAL switch OFF prior to the final OFF setting of the
OUTPUT CAL switch (Step 1.11) and turn off power. Wait 5 seconds and then
turn on power and the previous settings will be loaded.
RTD temperature to resistance conversion table
195.80194.09250
177.23175.85200
173.48172.17190
158.36157.33150
139.20138.5100
119.75119.4050
100.00100.000
79.9680.30-50
59.5560.25-100
38.6439.71-150
34.3835.53-160
alpha
0.00392
alpha
0.00385
Temperature
°°C
333.90329.54650
330.68326.38640
317.66313.63600
314.38310.41590
301.13297.42550
284.30280.92500
267.18264.13450
253.28250.49410
249.77247.05400
232.07229.69350
214.08212.03300
alpha
0.00392
alpha
0.00385
Temperature
°C

773
H
1-717-767-6511
Basic Calibration Wiring
The Basic Calibration should only be performed with an ambient temperature between
21°C and 29°C. The Basic Calibration was performed on the unit at the factory and
generally does not need to be done again. This procedure initializes the unit by calibrating
the input. The Basic Calibration should be performed only if a condition exists as
described in the “Unit Malfunction” section. After completion of this calibration, the unit
needs to be scaled in Field Calibration. The Basic Calibration procedure is described
below.
Note: To abort this calibration and reset to the previous settings, set the BASIC CAL
switch(#3) OFF prior to the final setting of the OUTPUT CAL switch (#1) (Step 4.17)
and turn off power for 5 seconds. Then turn on power and the previous settings will be
loaded.
Note: The nominal output value for the various output ranges are designated in the
following order: (0 to 20 mA, 4 to 20 mA, 0 to 10 VDC)
2.1 Connect an adjustable resistance source with an accuracy of 0.03% to the RTD input
terminals using a third sense wire. Set the RANGE (#7& #8), TYPE (#4), OUTPUT
CAL (#1), and FIELD CAL (#2) switches OFF. Set the BASIC CAL switch (#3) ON.
2.2 Apply operating power and allow a 45 minute warm-up period. [Current goes to -0.9
mA, 3.4 mA, or -0.5 V(nominal)]
2.3 Set the OUTPUT CAL switch (#1) ON and then OFF.
2.4 Set the resistance source to 40 ohms and wait 5 seconds.
2.5 Set the OUTPUT CAL switch (#1) ON and then OFF.
2.6 Set the resistance source to 60 ohms and wait 5 seconds.
2.7 Set the OUTPUT CAL switch (#1) ON and then OFF.
2.8 Set the resistance source to 100 ohms wait 5 seconds.
2.9 Set the OUTPUT CAL switch (#1) ON and then OFF.
2.10 Set the resistance source to 175 ohms and wait 5 seconds.
2.11 Set the OUTPUT CAL switch (#1) ON and then OFF.
2.12 Set the resistance source to 250 ohms and wait 5 seconds.
2.13 Set the OUTPUT CAL switch (#1) ON and then OFF.
2.14 Set the resistance source to 315 ohms and wait 5 seconds.
2.15 Set the OUTPUT CAL switch (#1) ON and then OFF.
2.16 Set the BASIC CAL switch (#3) OFF. [Current increases to 3.6 mA (nominal) or
more]
2.17 Perform a Field Calibration. (See Section 1.0)
2.0 Basic Calibration
Step 2.1
Steps 2.3 to 2.15
Step 2.16

774
H
www.redlion.net
APPLICATION
The temperature of certain industrial plastics is critical for melt flow of an
injection molding process. Different plastic grades and the complexity of the
mold determine required temperatures for efficient material flow. The master
control room monitors the temperature of the melt flow of each injection mold
machine. They will determine whether the operator may start the process on his
machine or override the injection molding process. The injection molding
machines are located throughout the plant, posing an RTD signal loss problem
from long cable runs. The IRMA DC powered unit is mounted at the machine
and uses the local 24 VDC for power. The signal loss problem is solved using
the 4 to 20 mA analog output for the long cable run to the master control room.
G Rail Installation
To install the
IRMA on a “G”
style DIN rail, angle
the module so that
the upper groove of
the “foot” catches
under the lip of the
top rail. Push the
module toward the
rail until it snaps
into place. To
remove a module
from the rail, push
up on the bottom of
the module while
pulling out away
from the rail.
T Rail Installation
To install the IRMA
on a “T” style rail,
angle the module so
that the top groove of
the “foot” is located
over the lip of the top
rail. Push the module
toward the rail until it
snaps into place. To
remove a module from
the rail, insert a
screwdriver into the
slot on the bottom of
the “foot”, and pry
upwards on the module
until it releases from
the rail.
INSTALLATION
The unit is equipped with a universal mounting foot for attachment to standard DIN style mounting rails,
including G profile rail according to EN50035 - G32 , and top hat (T) profile rail according to EN50022 - 35 x 7.5
and 35 x 15. The unit should be installed in a location that does not exceed the maximum operating temperature and
provides good air circulation. Placing the unit near devices that generate excessive heat should be avoided.

775
H
1-717-767-6511
USER PROGRAMMABLE INPUT
(Thermocouple types J, K, T, & E, or millivolt)
12 to 42 VDC LOOP POWERED (4 to 20 mA Output)
MICROPROCESSOR CONTROLLED
SIMPLE ADJUSTABLE RANGE SETTING (Using Input Signal)
THERMOCOUPLE BREAK DETECTION
MOUNTS ON “T” AND “G” STYLE DIN RAILS
2-WAY ELECTRICAL ISOLATION (INPUT/OUTPUT & POWER)
HIGH-DENSITY PACKAGING (22.5 mm wide)
WIDE OPERATING TEMPERATURE RANGE
DESCRIPTION
The ITMA accepts a thermocouple or millivolt input and converts it into a 4
to 20 mA current output. The 4 to 20 mA output is linearly proportional to the
temperature or the millivolt input. This output is ideal for interfacing to
indicators, chart recorders, controllers, or other instrumentation equipment.
The ITMA is loop-powered which means that the same two wires are
carrying both the power and the output signal. The unit controls the output
current draw from 4 to 20 mA in direct proportion to the input change while
consuming less than 4 mA for power. The conversion to a current output signal
makes the ITMA less susceptible to noise interference and allows accurate
transmission over long distances. The 2-Way isolation allows the use of
grounded thermocouples which can provide additional noise reduction benefits.
The ITMA uses a ten position DIP switch to accomplish the input sensor
configuration, range selection, and unit calibration. A simple range setting
technique (Field Calibration) is used so the actual input signal adjusts the output
current for scaling. This technique eliminates the need for potentiometers which
are vulnerable to changes due to vibration.
The unit is equipped with a universal mounting foot for attachment to
standard DIN style mounting rails, including top hat rail (T) according to EN 50
022 - 35 ×7.5 and 35 ×15, and G profile according to EN 50 035 - G 32.
SAFETY SUMMARY
All safety related regulations, local codes and instructions that appear in the
manual or on equipment must be observed to ensure personal safety and to
prevent damage to either the instrument or equipment connected to it. If
equipment is used in a manner not specified by the manufacturer, the protection
provided by the equipment may be impaired.
SPECIFICATIONS
1. POWER: 12 to 42 VDC *(Loop powered). The power supply must have a
30 mA min. capacity.
[* Min. voltage must be increased to include the drop across any current
display indicator]
2. INPUT: J, K, T, E, mV [selectable via DIP switch]
3. OUTPUT: 4 to 20 mA Linear output with Temperature or mV input.
Ripple: Less than 15 mV peak-to-peak max., across 250Ωload resistor (up
to 120 Hz frequencies).
4. RANGE & ACCURACY: (12 Bit resolution)
Accuracy: ±( 0.075% Range + 0.25°C [Conformity] + 0.50°C [Ice Point])
at 23°C after 20 min. warm-up, conforming to ITS-90.
Note: TC Conformity and Ice Point do not apply to mV input.
Relative Humidity: Less than 85% RH (non-condensing)
Span: The input span can be set to a min. of 1/8 of the full scale range,
anywhere within that range.
Thermocouple Accuracy for each type and the corresponding ranges:
MODEL ITMA - INTELLIGENT THERMOCOUPLE MODULE WITH ANALOG OUTPUT
DIMENSIONS In inches (mm)
TC
(INPUT)
RANGE
ACCURACY
RANGE
WIRE COLOR
BS1843ANSI
0-9 to 6 mV ±0.0113 mV
11 1 1 0 1 -9 to 22 mV ±0.0233 mV
21 1 1 1 0 -9 to 63 mV ±0.0540 mV
mV
31 1 1 1 1 -9 to 77 mV ±0.0645 mV
N/AN/A
00 0 0 0 0 -136 to 111°C ±0.19°C
10 0 0 0 1 69 to 575°C ±0.38°C
20 0 0 1 0
J338 to 800°C ±0.35°C
30 0 0 1 1 -149 to 862°C ±0.76°C
Yellow (+)
Blue (-)
White (+)
Red (-)
00 0 1 0 0 -200 to 541°C ±0.56°C
10 0 1 0 1 427 to 1132°C ±0.53°C
20 0 1 1 0 648 to 1372°C ±0.54°C
K
30 0 1 1 1 -192 to 1372°C ±1.17°C
Brown (+)
Blue (-)
Yellow (+)
Red (-)
00 1 0 0 0 -225 to 149°C ±0.28°C
10 1 0 0 1 74 to 326°C ±0.19°C
20 1 0 1 0 68 to 400°C ±0.25°C
T
30 1 0 1 1 -200 to 400°C ±0.45°C
White (+)
Blue (-)
Blue (+)
Red (-)
00 1 1 0 0 -111 to 311°C ±0.32°C
10 1 1 0 1 276 to 609°C ±0.25°C
20 1 1 1 0
DIP SWITCH
TYPE RANGE
6 7 8 9 10
377 to 1000°C ±0.47°C
E
30 1 1 1 1
TEMPERATURE
& mV RANGE
-114 to 1000°C ±0.84°C
Brown (+)
Blue (-)
Violet (+)
Red (-)
1 1 1 0 0
Ice Point Total Error
( ±0.19°C + ±0.25°C + ±0.50°C ) = ±0.94°C
Accuracy Example:
Type “J” Range “0”
-136°C to 111°C
CAUTION: Read complete Instructions prior
to installation and operation of the unit.
Note: DIP switch settings ON = 1 OFF = 0
Conformity
MODEL NO. DESCRIPTION PART NUMBER
ITMA Intelligent Thermocouple Module ITMA2003
ORDERING INFORMATION
Range

776
H
www.redlion.net
5. TC BREAK DETECTION: Upscale to 22.5 mA (nominal) or Downscale to
3.6 mA (nominal) [selectable via DIP switch]
6. RESPONSE TIME: 400 msec (to within 99% of final value w/step input;
typically, response is limited to response time of probe.)
7. ENVIRONMENTAL CONDITIONS:
Operating Temperature Range: -25°C to 75°C (-13°F to 167°F)
Storage Temperature Range: -40°C to 85°C (-40°F to 185°F)
Operating and Storage Humidity: 85% max. (non-condensing) from -25°C
to 75°C.
Temperature Coefficient: ±0.01% of input range per °C
Ice Point Compensation: ±0.75°C for a 50°C change in temperature
Altitude: Up to 2000 meters.
8. DIELECTRIC WITHSTAND VOLTAGE: 1500 VAC for 1 minute, at 50
VAC working volts, from Input to Output
9. CERTIFICATIONS AND COMPLIANCES:
SAFETY
IEC 1010-1, EN 61010-1: Safety requirements for electrical equipment for
measurement, control, and laboratory use, Part 1.
ELECTROMAGNETIC COMPATIBILITY
Notes:
1. This device was designed for installation in an enclosure. To avoid
electrostatic discharge, precautions should be taken when the device is
mounted outside an enclosure. When working in an enclosure (ex. making
adjustments, setting switches etc.) typical anti-static precautions should be
observed before touching the unit.
2. Self-recoverable loss of performance during EMI disturbance at 10 V/m:
Process signal may deviate during EMI disturbance.
For operation without loss of performance:
Unit is mounted in a metal enclosure (Buckeye SM7013-0 or equivalent)
I/O and power cables are routed in metal conduit connected to earth
ground.
Refer to the EMC Installation Guidelines section of this bulletin for
additional information.
10. MOUNTING: Universal mounting foot for attachment to standard DIN
style mounting rails, including top hat (T) profile rail according to EN50022
- 35 ×7.5 and 35 ×15, and G profile rail according to EN50035 - G32.
11. CONNECTION: Compression type terminal block
12. CONSTRUCTION: High impact black plastic case. Installation Category I,
Pollution Degree 2.
13. WEIGHT: 2.7 oz (76.54 g)
FUNCTION DESCRIPTIONS
Open Sensor Detection
The output can be set to go Upscale or Downscale for the detection of an
open sensor. The Upscale setting makes the output go to 22.5 mA (nominal).
The Downscale setting makes the output go to 3.5 mA (nominal). This setting
is always active, so changes in the setting are effective immediately.
Ice Point Compensation
The Ice Point Compensation for the thermocouple sensors can be enabled (DIP
Switch OFF) or disabled (DIP Switch ON). The mV sensor input is not affected
by this setting. Generally, the Ice Point Compensation is always enabled.
Calibration Malfunction
If the unit has scaling problems (current remains at 3.5 mA nominal), check
the voltage between the TC- Input (-) and TEST pad (+) [located next to the DIP
switches on the side of the unit]. For normal operation the voltage is -1.77 V
(nominal). If the voltage is +1.23 V(nominal), a problem occurred storing
information in the E2PROM. When this happens, perform a Basic Calibration
and then a Field Calibration. Turn off power for 5 seconds. Turn on power and
check the voltage between the TEST pad (+) and TC- Input (-). If the voltage is
still +1.23 V(nominal), contact the factory.
FACTORY SETTINGS
The unit is shipped from the factory calibrated for a 4 to 20 mA output using
a type J thermocouple in range 3. The ITMA should be Field calibrated by the
operator for the application environment it will be used in. If the unit is not
recalibrated by the operator, the following table lists the temperature ranges for
the given thermocouple types.
WIRING CONNECTIONS
All conductors should meet voltage and current ratings for each terminal.
Also, cabling should conform to appropriate standards of good installation,
local codes and regulations. It is recommended that power supplied to the unit
be protected by a fuse or circuit breaker. When wiring the unit, use the numbers
on the label to identify the position number with the proper function. Strip the
wire, leaving approximately 1/4" (6 mm) of bare wire exposed (stranded wire
should be tinned with solder). Insert the wire into the terminal, and tighten the
screw until the wire is clamped tightly.
BLOCK DIAGRAM
-85°C to 790°C
3°C to 602°C
3
3
K
E
-50°C to 500°C
-195°C to 162°C
3
3
J
T
TEMPERATURE RANGERANGETYPE
Enclosure class AEN 55011RF interference
Emissions to EN 50081-2
150 KHz - 80 MHz
Level 3; 10 V/rms EN 61000-4-6RF conducted interference
Level 3; 2 Kv power
Level 4; 2 Kv I/OEN 61000-4-4Fast transients (burst)
80 MHz - 1 GHz
Level 3; 10 V/m 2
EN 61000-4-3Electromagnetic RF fields
Level 3; 8 Kv air
Level 2; 4 Kv contact 1
EN 61000-4-2Electrostatic discharge
Immunity to EN 50082-2

777
H
1-717-767-6511
SWITCH DESCRIPTION
1OUTPUT CAL Output Calibration
2FIELD CAL Field Calibration
3BASIC CAL Basic Calibration
4ICE PT EN/DIS Ice Point Compensation -
Disabled (ON) / Enabled (OFF)
5OPEN SEN DN/UP Open Sensor Detection -
Upscale (ON) / Downscale (OFF)
6
7
8
TC TYPE Thermocouple Type - 3 switch
combination setting
9
10 RANGE Sensor Range - 2 switch
combination setting
INPUT AND POWER/OUTPUT CONNECTIONS
Input
When connecting the thermocouple, be certain that the connections are clean
and tight. The negative thermocouple lead is connected to Terminal #2 (TC-)
and the positive lead is connected to Terminal #1 (TC+). If the thermocouple
probe cannot be connected directly to the module, thermocouple wire or
thermocouple extension-grade wire must be used to extend the connection points
(copper wire does not work). Always refer to the thermocouple manufacturer’s
recommendations for mounting, temperature range, shielding, etc.
Power/Output
The unit has the power and current output sharing the same two wires (loop-
powered). Connect DC power to terminals #4 and #5, observing the correct
polarity, with a current meter/indicator connected in between so that the output
current can be monitored. Be certain that the DC power is relatively “clean” and
within the 12 to 42 VDC range at the terminals. The current meter voltage drop
must be included in power supply considerations.
DIP SWITCH SETTING DESCRIPTIONS
DIP SWITCH
RANGE 910
0 0 0
1 0 1
2 1 0
3 1 1
DIP SWITCH
TC
TYPE 6 7 8
J 0 0 0
K 0 0 1
T 0 1 0
mV
E
1
0
1
1
1
1
TC Type and Range switch settings (ON = 1 OFF = 0)

778
H
www.redlion.net
This calibration procedure can be used to assign the high and low input values if a
thermocouple calibrator is not available.
Note: To abort this calibration and reset to the previous settings, set the FIELD CAL
switch OFF prior to the final OFF setting of the OUTPUT CAL switch (Step 2.12) and
turn off power. Wait 5 seconds and then turn on power and the previous settings will
be loaded.
2.1 Connect the accurate Adjustable Millivolt Source to the TC input terminals.
2.2 Set the ICE PT EN/DIS switch (#4) ON to disable Ice Point Compensation.
2.3 Set the Type and Range for the thermocouple or mV used in your application (DIP
switches #6 through #10).(TC type “J”, Range 0 shown)
2.4 Set the FIELD CAL switch (#2) ON.[Current goes to 3.6 mA (nominal)]
2.5 Apply the input signal (mV equivalent for the thermocouple temperature) for the 4
mA output.
2.6 Set the OUTPUT CAL switch (#1) ON. [Current stays at 3.6 mA (nominal)]
2.7 Adjust the input signal up until the output equals 4 mA.
2.8 Set the OUTPUT CAL switch (#1) OFF. [Current increases to 22.3 mA (nominal)]
2.9 Apply the input signal (millivolt equivalent for the thermocouple temperature) for
the 20 mA output.
2.10 Set the OUTPUT CAL switch (#1) ON. [Current decreases to 20.5 mA (nominal)]
2.11 Adjust the input signal down until the output equals 20 mA.
2.12 Set the OUTPUT CAL switch (#1) OFF.
2.13 Set the FIELD CAL switch (#2) OFF.
2.14 Set the ICE PT EN/DIS switch (#4) OFF to enable Ice Point Compensation.
2.15 Disconnect millivolt source from the ITMA and connect the actual sensor to be used
in the application.
Field Calibration Wiring
Step 1.13
Step 1.3 & 1.4
Step 1.5
Step 1.7
Step 1.9
Step 1.11
Step 1.14
1.0 Field Calibration
CALIBRATION PROCEDURES
Field Calibration scales the 4 to 20 mA output to a temperature or mV input. This
procedure assigns an input value to 4 mA and an input value to 20 mA. The
microprocessor handles configuring the output so it is linear to the temperature or mV
input. The Field Calibration procedure is described below.
Note: Allow a 30 minute warm-up period before calibrating. The unit needs to have the
Field Calibration completed by the operator before normal operation. To abort this
calibration and reset to the previous settings, set the FIELD CAL switch OFF prior to
the final OFF setting of the OUTPUT CAL switch (Step 1.13) and turn off power. Wait
5 seconds and then turn on power and the previous settings will be loaded.
Field Calibration with a Thermocouple Calibrator
1.1 Enable the Ice Point Compensation on the Thermocouple Calibrator and set it to the
Thermocouple type being used in your application.
1.2 Connect the thermocouple wire as selected in step 1 to the TC input terminals of the
ITMA and the thermocouple calibrator.
1.3 Set the ICE PT EN/DIS switch (#4) OFF to enable Ice Point Compensation.
1.4 Set the Type and Range for the thermocouple or mV used in your application (DIP
switches #6 through #10). (TC type “J”, Range 0 shown)
1.5 Set the FIELD CAL switch (#2) ON. [Current goes to 3.6 mA (nominal)]
1.6 Apply the input signal for the 4 mA output.
1.7 Set the OUTPUT CAL switch (#1) ON. [Current stays at 3.6 mA (nominal)]
1.8 Adjust the input signal up until the output equals 4 mA.
1.9 Set the OUTPUT CAL switch (#1) OFF. [Current increases to 22.3 mA (nominal)]
1.10 Apply the input signal for the 20 mA output.
1.11 Set the OUTPUT CAL switch (#1) ON. [Current decreases to 20.5 mA (nominal)]
1.12 Adjust the input signal down until the output equals 20 mA.
1.13 Set the OUTPUT CAL switch (#1) OFF.
1.14 Set the FIELD CAL switch (#2) OFF.
1.15 Disconnect the thermocouple calibrator from the ITMA and connect the actual
sensor to be used in the application.
Field Calibration Wiring
Step 2.2 & 2.3
Step 2.4
Step 2.6
Step 2.8
Step 2.10
Step 2.12
Step 2.13
Step 2.14
2.0 Field Calibration With an Accurate Adjustable Millivolt Source: (Alternate Method)

779
H
1-717-767-6511
Ice Point Calibration Wiring
Step 3.1
Step 3.5
Step 3.5
Step 3.6
3.0 Ice Point Calibration
The Ice Point Calibration should only be performed with an ambient temperature
between 21°C and 29°C. This Calibration was performed on the unit at the factory during
the Basic Calibration and generally does not need to be done again. The Ice Point
Compensation can be adjusted through this calibration. The Ice Point Calibration
procedure is described below.
Note: Calibration can be aborted by setting the BASIC CAL switch OFF prior to the
setting of the OUTPUT CAL switch OFF. (Step 3.6)
3.1 Connect a precision mV source with an accuracy of 0.02% to Terminal #1 TC+ Input
and Terminal #2 TC- Input. Set the OUTPUT CAL switch (#1) and ICE PT EN/DIS
switch (#4) OFF. Set the BASIC CAL (#3) and FIELD CAL (#2) switches ON. The
positions of switches #5 thru #10 are not relevant for this calibration procedure.
3.2 Connect a precision thermometer (accuracy of 0.1°C) to the unused terminal (#3)
beside the TC Input terminals.
3.3 Apply power and allow a 30 minute warm-up period. [Current goes to 3.5 mA
(nominal)]
3.4 Using the temperature indicated by the precision thermometer, input an equivalent
1 mV/°C signal to the TC Input terminals and wait 5 seconds.
3.5 Set the OUTPUT CAL switch (#1) ON and then OFF.
3.6 Set the BASIC CAL switch (#3) and FIELD CAL switch (#2) OFF. [Current
increases to 3.6 mA (nominal) or more]

780
H
www.redlion.net
Basic Calibration Wiring
Step 4.1
Steps 4.3 to 4.15
Step 4.16
Step 4.17
Step 4.18
4.0 Basic Calibration
The Basic Calibration should only be performed with an ambient temperature
between 21°C and 29°C. The Basic Calibration was performed on the unit at the
factory and generally does not need to be done again. This procedure initializes the
unit by calibrating the input, and the Ice Point Compensation. The Basic Calibration
should be performed only if a condition exists as described in the “Calibration
Malfunction” section. After completion of this calibration, the unit needs to be scaled
in Field Calibration. The Basic Calibration procedure is described below.
Note: To abort this calibration and reset to the previous settings, set the BASIC CAL
switch OFF prior to the final setting of the OUTPUT CAL switch (Step 4.17) and
turn off power for 5 seconds. Then turn on power and the previous settings will be
loaded.
4.1 Connect a precision mV source with an accuracy of 0.02% to Terminal #1 (TC+
Input) and Terminal #2 (TC- Input). Set the ICE PT EN/DIS switch (#4), RANGE
(#9
), TYPE (#6, #7, and #8), OUTPUT CAL (#1), and FIELD CAL (#2)
switches OFF. Set the BASIC CAL switch (#3) ON.
4.2 Apply power and allow a 30 minute warm-up period. [Current goes to 3.5 mA
(nominal)]
4.3 Set the OUTPUT CAL switch (#1) ON and then OFF.
4.4 Input -9 mV and wait 5 seconds.
4.5 Set the OUTPUT CAL switch (#1) ON and then OFF.
4.6 Input 6 mV and wait 5 seconds.
4.7 Set the OUTPUT CAL switch (#1) ON and then OFF.
4.8 Input 22 mV and wait 5 seconds.
4.9 Set the OUTPUT CAL switch (#1) ON and then OFF.
4.10 Input 41mV and wait 5 seconds.
4.11 Set the OUTPUT CAL switch (#1) ON and then OFF.
4.12 Input 63 mV and wait 5 seconds.
4.13 Set the OUTPUT CAL switch (#1) ON and then OFF.
4.14 Input 77 mV and wait 5 seconds.
4.15 Set the OUTPUT CAL switch (#1) ON and then OFF.
4.16 Ice Point Calibration.
a. If ice point calibration is not desired, go to step 4.17.
b. To Enable ice point calibration, set the FIELD CAL switch (#2) ON.
1. Connect a precision thermometer (accuracy of 0.1°C) to the unused
terminal beside the TC Input terminals.
2. Allow 5 minutes for the temperature to equalize.
3. Using the temperature indicated by the precision thermometer, input an
equivalent 1 mV/°C signal to the TC Input terminals.
4.17 Set the OUTPUT CAL switch (#1) ON and then OFF.
4.18 Set the BASIC CAL switch (#3) and FIELD CAL switch (#2) OFF. [Current
increases to 3.6 mA (nominal) or more]
4.19 Perform a Field Calibration. (See Section 1.0)

781
H
1-717-767-6511
APPLICATION
A meat processing plant needs to keep daily records of the process area
temperature. FDA regulations require the temperature to be 22°C at all
times. The ITMA can be used for this application, with the added benefit of
being DIN rail mounted to save space.
The ITMA will sense the process area temperature, and transmit a 4 to 20
mA output to a chart recorder. The processing plant uses a “J” type
thermocouple with a range of -136°C to 111°C. The ITMA is field calibrated
to output 4 mA at 0°C and 20 mA at 44°C. See Section 1.0 for the Field
Calibration procedure.
The ITMA output receives its power from a PSDR1200 Signal
Conditioning Power Supply with a +24 VDC output.
G Rail Installation
To install the
ITMA on a “G” style
DIN rail, angle the
module so that the
upper groove of the
“foot” catches under
the lip of the top rail.
Push the module
toward the rail until it
snaps into place. To
remove a module
from the rail, push up
on the bottom of the
module while pulling
out away from the rail.
T Rail Installation
To install the ITMA
on a “T” style rail,
angle the module so
that the top groove of
the “foot” is located
over the lip of the top
rail. Push the module
toward the rail until it
snaps into place. To
remove a module from
the rail, insert a
screwdriver into the slot
on the bottom of the
“foot”, and pry upwards
on the module until it
releases from the rail.
INSTALLATION
The unit is equipped with a universal mounting foot for attachment to standard DIN style mounting rails,
including G profile rail according to EN50035 - G32 , and top hat (T) profile rail according to EN50022 - 35 x 7.5
and 35 x 15. The unit should be installed in a location that does not exceed the maximum operating temperature and
provides good air circulation. Placing the unit near devices that generate excessive heat should be avoided.
TROUBLESHOOTING
For further technical assistance, contact technical support at the appropriate
company numbers listed.

782
H
www.redlion.net
USER PROGRAMMABLE INPUT
(Thermocouple types J, K, T, & E, or millivolt)
MICROPROCESSOR CONTROLLED
SIMPLE ADJUSTABLE RANGE SETTING (Using Input Signal)
THERMOCOUPLE BREAK DETECTION
MOUNTS ON “T” AND “G” STYLE DIN RAILS
3-WAY ELECTRICAL ISOLATION (POWER/INPUT/OUTPUT)
MULTIPLE ANALOG OUTPUTS (0 to 20 mA, 4 to 20 mA, and 0 to
10 VDC)
WIDE OPERATING TEMPERATURE RANGE (-25°C to 75°C)
POWER & MEMORY ERROR INDICATION
9 to 32 VDC POWERED
DESCRIPTION
The ITMA accepts a thermocouple or millivolt input and converts it into a
voltage or current output. The voltage or current output is linearly proportional
to the temperature or millivolt input. This output is ideal for interfacing to
indicators, chart recorders, controllers, or other instrumentation equipment.
The ITMA is DC powered. The DC power input is isolated from the signal
input and analog output. The unit scales the analog output proportionally to the
thermocouple or millivolt input signal. The analog output may be configured for
one of the following: 0 to 20 mA, 4 to 20 mA, or 0 to 10 VDC. Making the
signal conversion with the ITMA to a current output signal, makes the signal
less susceptible to noise interference and allows accurate transmission over long
distances. The 3-Way isolation allows the use of grounded thermocouples which
can provide additional noise reduction benefits.
The ITMA uses a ten position DIP switch to accomplish the input sensor
configuration, range selection, and unit calibration. A simple range setting
technique (Field Calibration) is used so the actual input signal adjusts the output
for scaling. This technique eliminates the need for potentiometers which are
vulnerable to changes due to vibration.
The unit is equipped with a universal mounting foot for attachment to
standard DIN style mounting rails, including top hat rail (T) according to EN 50
022 - 35 ×7.5 and 35 ×15, and (G) profile according to EN 50 035 - G 32.
SAFETY SUMMARY
All safety related regulations, local codes and instructions that appear in the
manual or on equipment must be observed to ensure personal safety and to
prevent damage to either the instrument or equipment connected to it. If
equipment is used in a manner not specified by the manufacturer, the protection
provided by the equipment may be impaired.
SPECIFICATIONS
1. POWER: 9 to 32 VDC; 1.75 W The power supply must have 300 mA for 200
msec. surge capacity.
2. INPUT: J, K, T, E, mV [selectable via DIP switch]
3. OUTPUT: All output signals scaled linearly using temperature or mV input.
Unit is shipped set for 4 to 20 mA output. 4 to 20 mA or 0 to 20 mA selected
via internal jumper.
Voltage Output Compliance:
0 to 10 VDC across min 1 KΩload (10 mA)
20 mV peak to peak max. ripple (for frequencies up to 120 Hz)
Current Output Compliance:
0 to 20 mA through max. 600Ωload (12 VDC)
4 to 20 mA through max. 600Ωload (12 VDC)
15 mV peak to peak max. ripple across 600Ωload (for freq. up to 120 Hz)
4. TC BREAK DETECTION: Nominal values shown in the following order:
(0 to 20 mA, 4 to 20 mA, and 0 to 10 VDC).
Upscale: 22.9 mA, 22.5 mA, and 11.5 VDC
Downscale: -0.5 mA, 3.5 mA, and -0.4 VDC
5. RESPONSE TIME: 400 msec (to within 99% of final value w/step input;
typically, response is limited to response time of probe.)
6. TEMPERATURE EFFECTS:
Temperature Coefficient: ±0.025% of input range per °C
Ice Point Compensation: ±0.75°C for a 50°C change in temperature
7. DIELECTRIC WITHSTAND VOLTAGE: 1500 VAC for 1 minute
Working Voltage: 50 VAC
Power input to Signal input, Power input to Signal output, & Signal input to
Signal output.
8. RANGE & ACCURACY: (12 Bit resolution)
Accuracy: ±( 0.075% Range + 0.25°C [Conformity] + 0.50°C [Ice Point])
at 23°C after 20 min. warm-up, conforming to ITS-90.
Note: TC Conformity and Ice Point do not apply to mV input
MODEL ITMA DC - INTELLIGENT THERMOCOUPLE MODULE WITH ANALOG OUTPUT
DIMENSIONS In inches (mm)
CAUTION: Read complete instructions prior
to installation and operation of the unit.

783
H
1-717-767-6511
Relative Humidity: Less than 85% RH (non-condensing)
Span: The input span can be set to a min. of 1/8 of the full scale range,
anywhere within that range.
Thermocouple Accuracy for each type and the corresponding ranges:
9. ENVIRONMENTAL CONDITIONS:
Operating Temperature Range: -25°C to 75°C (-13°F to 167°F)
Storage Temperature Range: -40 to 85°C (-40°F to 185°F)
Operating and Storage Humidity: 85% max. relative humidity (non-
condensing) from -25°C to 75°C.
Altitude: Up to 2000 meters
10. MOUNTING: Universal mounting foot for attachment to standard DIN
style mounting rails, including top hat (T) profile rail according to EN50022
-35 ×7.5 and -35 ×15, and G profile rail according to EN50035 - G32.
11. CONNECTION: Compression type terminal block
12. CONSTRUCTION: High impact black plastic case
13. CERTIFICATIONS AND COMPLIANCES:
SAFETY
IEC 1010-1, EN 61010-1: Safety requirements for electrical equipment for
measurement, control, and laboratory use, Part 1.
ELECTROMAGNETIC COMPATIBILITY
Notes:
1. This device was designed for installation in an enclosure. To avoid
electrostatic discharge, precautions should be taken when the device is
mounted outside an enclosure. When working in an enclosure (ex.
making adjustments, setting switches etc.) typical anti-static
precautions should be observed before touching the unit.
2. Self-recoverable loss of performance during EMI disturbance at 10 V/m:
Process signal may deviate during EMI disturbance.
For operation without loss of performance:
Unit is mounted in a metal enclosure (Buckeye SM7013-0 or equivalent)
I/O and power cables are routed in metal conduit connected to earth ground.
Refer to the EMC Installation Guidelines section of this bulletin for
additional information.
14. WEIGHT: 4.02 oz. (114.0 g)
FUNCTION DESCRIPTIONS
Open Sensor Detection
The output can be set to go Upscale or Downscale for the detection of an open
sensor. The nominal values for each output range are listed under TC Break
Detection in the Specifications section. This setting is always active, so changes
to the setting are effective immediately.
Ice Point Compensation
The Ice Point Compensation for the thermocouple sensors can be enabled (DIP
Switch OFF) or disabled (DIP Switch ON). The mV sensor input is not affected
by this setting. Generally, the Ice Point Compensation is always enabled.
Unit Malfunction
If the unit has scaling problems (output remains at -0.5 mA, 3.5 mA, or -0.5
VDC nominal), check the ERROR LED on the front of the unit. An E2PROM
problem is indicated when the ERROR LED is on. If the ERROR LED is on,
perform a Basic Calibration followed by a Field Calibration. Turn the power off
for 5 seconds. Turn power on and check if the ERROR LED is on. If the LED
is on, contact the factory.
EMC INSTALLATION GUIDELINES
Although this unit is designed with a high degree of immunity to
ElectroMagnetic Interference (EMI), proper installation and wiring methods
must be followed to ensure compatibility in each application. The type of the
electrical noise, source or coupling method into the unit may be different for
various installations. Cable length, routing and shield termination are very
important and can mean the difference between a successful or a troublesome
installation. Listed below are some EMC guidelines for successful installation in
an industrial environment.
1. Use shielded (screened) cables for all Signal and Control inputs. The shield
(screen) pigtail connection should be made as short as possible. The
connection point for the shield depends somewhat upon the application.
Listed below are the recommended methods of connecting the shield, in order
of their effectiveness.
a. Connect the shield only at the rail where the unit is mounted to earth
ground (protective earth).
b. Connect the shield to earth ground at both ends of the cable, usually when
the noise source frequency is above 1 MHz.
c. Connect the shield to common of the unit and leave the other end of the
shield unconnected and insulated from earth ground.
2. Never run Signal or Control cables in the same conduit or raceway with AC
power lines, conductors feeding motors, solenoids, SCR controls, and
heaters, etc. The cables should be run in metal conduit that is properly
grounded. This is especially useful in applications where cable runs are long
and portable two-way radios are used in close proximity or if the installation
is near a commercial radio transmitter.
3. Signal or Control cables within an enclosure should be routed as far away as
possible from contactors, control relays, transformers, and other noisy
components.
4. In extremely high EMI environments, the use of external EMI suppression
devices, such as ferrite suppression cores, is effective. Install them on Signal
and Control cables as close to the unit as possible. Loop the cable through the
core several times or use multiple cores on each cable for additional protection.
Install line filters on the power input cable to the unit to suppress power line
interference. Install them near the power entry point of the enclosure. The
following EMI suppression devices (or equivalent) are recommended:
Ferrite Suppression Cores for signal and control cables:
Fair-Rite # 0443167251 (RLC #FCOR0000)
TDK # ZCAT3035-1330A
Steward #28B2029-0A0
Line Filters for input power cables:
Schaffner # FN610-1/07 (RLC #LFIL0000)
Schaffner # FN670-1.8/07
Corcom #1VR3
Note: Reference manufacturer’s instructions when installing a line filter.
5. Long cable runs are more susceptible to EMI pickup than short cable runs.
Therefore, keep cable runs as short as possible.
BLOCK DIAGRAM
Enclosure class B
150 KHz - 80 MHz
Level 3; 10 V/rms
EN 55011
EN 61000-4-6
RF interference
Emission to EN 50081-2
RF conducted interference
EN 61000-4-4Fast transients (burst)
80 MHz - 1 GHz
Level 3; 10 V/m2
EN 61000-4-3Electromagnetic RF fields
EN 61000-4-2
Immunity to EN 50082-2
Electrostatic discharge
Level 3; 2 Kv power
Level 3; 8 Kv air
Level 2; 4 Kv contact1
TC
(INPUT) RANGE
DIP SWITCH
TYPE RANGE
6 7 8 9 10
TEMPERATURE
& mV RANGE
RANGE
ACCURACY
WIRE COLOR
ANSI BS1843
01 1 1 0 0 -9 to 6 mV ±0.0113 mV
N/A
Yellow (+)
Blue (-)
11 1 1 0 1 -9 to 22 mV ±0.0233 mV
Brown (+)
Blue (-)
White (+)
Blue (-)
21 1 1 1 0 -9 to 63 mV ±0.0540 mV
Brown (+)
Blue (-)
mV
31 1 1 1 1 -9 to 77 mV ±0.0645 mV
N/A
00 0 0 0 0 -136 to 111°C ±0.19°C
10 0 0 0 1 69 to 575°C ±0.38°C
20 0 0 1 0 338 to 800°C ±0.35°C
J
30 0 0 1 1 -149 to 862°C ±0.76°C
White (+)
Red (-)
00 0 1 0 0 -200 to 541°C ±0.56°C
10 0 1 0 1 427 to 1132°C ±0.53°C
20 0 1 1 0 648 to 1372°C ±0.54°C
K
30 0 1 1 1 -192 to 1372°C ±1.17°C
Yellow (+)
Red (-)
00 1 0 0 0 -225 to 149°C ±0.28°C
10 1 0 0 1 74 to 326°C ±0.19°C
20 1 0 1 0 68 to 400°C ±0.25°C
T
30 1 0 1 1 -200 to 400°C ±0.45°C
Blue (+)
Red (-)
00 1 1 0 0 -111 to 311°C ±0.32°C
10 1 1 0 1 276 to 609°C ±0.25°C
20 1 1 1 0 377 to 1000°C ±0.47°C
E
30 1 1 1 1 -114 to 1000°C ±0.84°C
Violet (+)
Red (-)
Ice Point Total Error
( ±0.19°C + ±0.25°C + ±0.50°C ) = ±0.94°C
Accuracy Example:
Type “J” Range “0”
-136°C to 111°C
Note: DIP switch settings ON = 1 OFF = 0
ConformityRange
Level 4; 2 Kv I/O

784
H
www.redlion.net
WIRING CONNECTIONS
All conductors should meet
voltage and current ratings for each
terminal. Also, cabling should
conform to appropriate standards of
good installation, local codes and
regulations. It is recommended that
power supplied to the unit be
protected by a fuse or circuit
breaker. When wiring the unit, use
the numbers on the label to identify
the position number with the proper
function. Strip the wire, leaving
approximately 1/4" (6 mm) of bare
wire exposed (stranded wire should
be tinned with solder). Insert the
wire into the terminal, and tighten
the screw until the wire is clamped
tightly.
INPUT, OUTPUT, AND POWER CONNECTIONS
INPUT
Ensure thermocouple wire ends are stripped and clean. Connect positive
thermocouple lead to terminal #7 (TC+). Connect negative thermocouple lead
to terminal #8 (TC-). If the thermocouple probe cannot be connected directly to
the module, thermocouple wire or thermocouple extension-grade wire must be
used to extend the connection (copper wire does not work). Always refer to the
thermocouple manufacturer’s recommendations for: mounting, temperature
range, shielding, etc.
OUTPUT
Connect the output signal wires to the desired output terminals. For voltage
output, use terminals #4 and #6; for current output, use terminals #1 and #3
observing proper polarity. Only one output may be used at a time. The unit is
factory set for a 4 to 20 mA output. The voltage output will track the current
output nominally within a ±2.5% deviation range.
To select 0 to 20 mA, output you must open the case and cut the wire jumper.
The jumper is located to the left side of the board as shown in the drawing.
POWER
Connect DC power to terminals #10 and #12 observing proper polarity. Be
certain DC power is within the 9 to 32 VDC specifications.
POWER LED
The ITMA has a green LED located on the front to indicate that power is
applied to the unit.
DIP SWITCH SETTING DESCRIPTIONS
TC Type and Range switch settings (ON = 1 OFF = 0)
FACTORY SETTINGS
The unit is shipped from the factory calibrated for a 4 to 20 mA output using
a type J thermocouple in range 3. The ITMA should be Field calibrated by the
operator for the application environment it will be used in. If the unit is not
recalibrated by the operator, the following table lists the temperature ranges for
the given thermocouple types.
TROUBLESHOOTING
For further technical assistance, contact technical support at the appropriate
company numbers listed.
SWITCH LABEL DESCRIPTION
1OUTPUT CAL Output Calibration
2FIELD CAL Field Calibration
3BASIC CAL Basic Calibration
4ICE PT DIS/EN Ice Point Compensation -
Disabled (ON) / Enabled (OFF)
5OPEN SEN UP/DN Open Sensor Detection -
Upscale (ON) / Downscale (OFF)
6
7
8
TC TYPE Thermocouple Type - 3 switch
combination setting
9
10 RANGE Sensor Range - 2 switch
combination setting
mV 1 1
DIP SWITCH
TC
TYPE 6 87
J 0 00
K 0 10
T 0 01
E 0 11
DIP SWITCH
RANGE 910
0 0 0
1
1 0 1
2 1 0
3 1 1
TYPE
T
J
RANGE
3
3
NOMINAL FACTORY FIELD CALIBRATION
TEMPERATURE RANGE
-195°C to 162°C
-50°C to 500°C
E
K
3
3
3°C to 602°C
-85°C to 790°C

785
H
1-717-767-6511
Note: The nominal output value for the various output ranges are designated in the
following order: (0 to 20 mA, 4 to 20 mA, 0 to 10 VDC)
This calibration procedure can be used to assign the high and low input values if a
thermocouple calibrator is not available.
Note: To abort this calibration and reset to the previous settings, set the FIELD CAL
switch(#2) OFF prior to the final OFF setting of the OUTPUT CAL switch (Step
2.12) and turn off power. Wait 5 seconds and then turn on power and the previous
settings will be loaded.
2.1 Connect the accurate Adjustable Millivolt Source to the TC input terminals.
2.2 Set the ICE PT EN/DIS switch (#4) ON to disable Ice Point Compensation.
2.3 Set the Type and Range for the thermocouple or mV used in your application (DIP
switches #6 through #10).(TC type “J”, Range 0 shown)
2.4 Set the FIELD CAL switch (#2) ON.[Output goes to -0.8 mA, 3.5 mA, or -0.4 V
nominal]
2.5 Apply the input signal (mV equivalent for the thermocouple temperature) for the
analog output low value.
2.6 Set the OUTPUT CAL switch (#1) ON. [Output stays at -0.8 mA, 3.5 mA, or -
0.4 V nominal]
2.7 Adjust the input signal up until the output equals desired low value.
2.8 Set the OUTPUT CAL switch (#1) OFF. [Output increases to 22.9 mA, 22.5 mA,
or 11.5 V nominal]
2.9 Apply the input signal (millivolt equivalent for the thermocouple temperature) for
the analog output high value.
2.10 Set the OUTPUT CAL switch (#1) ON. [Output decreases to 21.1 mA, 20.7 mA,
or 10.6 V nominal]
2.11 Adjust the input signal down until the output equals desired high value.
2.12 Set the OUTPUT CAL switch (#1) OFF.
2.13 Set the FIELD CAL switch (#2) OFF.
2.14 Set the ICE PT EN/DIS switch (#4) OFF to enable Ice Point Compensation.
2.15 Disconnect millivolt source from the ITMA and connect the actual sensor to be
used in the application.
Field Calibration Wiring
Step 2.2 & 2.3
Step 2.4
Step 2.6
Step 2.8
Step 2.10
Step 2.12
Step 2.13
Step 2.14
2.0 Field Calibration With an Accurate Adjustable Millivolt Source: (Alternate Method)
Note: The unit needs to have the Field Calibration completed by the operator before
normal operation. To abort this calibration and reset to the previous settings, set
the FIELD CAL switch(#2) OFF prior to the final OFF setting of the OUTPUT
CAL switch (Step 1.13) and turn off power. Wait 5 seconds and then turn on power
and the previous settings will be loaded.
Field Calibration with a Thermocouple Calibrator
1.1 Enable the Ice Point Compensation on the Thermocouple Calibrator and set it to
the Thermocouple type being used in your application.
1.2 Connect the thermocouple wire as selected in step 1 to the TC input terminals of
the ITMA and the thermocouple calibrator.
1.3 Set the ICE PT EN/DIS switch (#4) OFF to enable Ice Point Compensation.
1.4 Set the Type and Range for the thermocouple or mV used in your application (DIP
switches #6 through #10). (TC type “J”, Range 0 shown)
1.5 Set the FIELD CAL switch (#2) ON. [Output goes to -0.8 mA, 3.5 mA, or -0.4 V
nominal]
1.6 Apply the input signal for the analog output low value.
1.7 Set the OUTPUT CAL switch (#1) ON. [Output stays at -0.8 mA, 3.5 mA, or -
0.4 V nominal]
1.8 Adjust the input signal up until the output equals desired low value.
1.9 Set the OUTPUT CAL switch (#1) OFF. [Output increases to 22.9 mA, 22.5 mA,
or 11.5 V nominal]
1.10 Apply the input signal for the analog output high value.
1.11 Set the OUTPUT CAL switch (#1) ON. [Output decreases to 21.1 mA, 20.7 mA,
or 10.6 V nominal]
1.12 Adjust the input signal down until the output equals desired high value.
1.13 Set the OUTPUT CAL switch (#1) OFF.
1.14 Set the FIELD CAL switch (#2) OFF.
1.15 Disconnect the thermocouple calibrator from the ITMA and connect the actual
sensor to be used in the application.
Step 1.13
Step 1.3 & 1.4
Step 1.5
Step 1.7
Step 1.9
Step 1.11
Step 1.14
Field Calibration Wiring
Note: The nominal output value for the various output ranges are designated in the following order: (0 to 20 mA, 4
to 20 mA, 0 to 10 VDC)
Allow a 30 minute warm-up period before starting Field Calibration. Field Calibration scales the voltage or current
output to a temperature or mV input. This procedure assigns an input value to analog output low and an input value
to analog output high. The microprocessor handles configuring the output so it is linear to the temperature or mV input.
The Field Calibration procedure is described below.
1.0 Field Calibration
CALIBRATION PROCEDURES

786
H
www.redlion.net
Note: The nominal output value for the various output ranges are designated in the
following order: (0 to 20 mA, 4 to 20 mA, 0 to 10 VDC)
The Basic Calibration should only be performed with an ambient temperature
between 21°C and 29°C. The Basic Calibration was performed on the unit at the
factory and generally does not need to be done again. This procedure initializes the
unit by calibrating the input, and the Ice Point Compensation. The Basic Calibration
should be performed only if a condition exists as described in the “Unit Malfunction”
section. After completion of this calibration, the unit needs to be scaled in Field
Calibration. The Basic Calibration procedure is described below.
Note: To abort this calibration and reset to the previous settings, set the BASIC CAL
switch(#3) OFF prior to the final setting of the OUTPUT CAL switch (Step 4.17)
and turn off power for 5 seconds. Then turn on power and the previous settings will
be loaded.
4.1 Connect a precision mV source with an accuracy of 0.02% to Terminal #7 (TC+
Input) and Terminal #8 (TC- Input). Set the ICE PT EN/DIS switch (#4),
RANGE (#9
), TYPE (#6, #7, and #8), OUTPUT CAL (#1), and FIELD
CAL (#2) switches OFF. Set the BASIC CAL switch (#3) ON.
4.2 Apply power and allow a 30 minute warm-up period. [Output goes to -0.9 mA,
3.4 mA, or -0.5 V nominal]
4.3 Set the OUTPUT CAL switch (#1) ON and then OFF.
4.4 Input -9 mV and wait 5 seconds.
4.5 Set the OUTPUT CAL switch (#1) ON and then OFF.
4.6 Input 6 mV and wait 5 seconds.
4.7 Set the OUTPUT CAL switch (#1) ON and then OFF.
4.8 Input 22 mV and wait 5 seconds.
4.9 Set the OUTPUT CAL switch (#1) ON and then OFF.
4.10 Input 41mV and wait 5 seconds.
4.11 Set the OUTPUT CAL switch (#1) ON and then OFF.
4.12 Input 63 mV and wait 5 seconds.
4.13 Set the OUTPUT CAL switch (#1) ON and then OFF.
4.14 Input 77 mV and wait 5 seconds.
4.15 Set the OUTPUT CAL switch (#1) ON and then OFF.
4.16 Ice Point Calibration.
a. If ice point calibration is not desired, go to step 4.17.
b. To Enable ice point calibration, set the FIELD CAL switch (#2) ON.
1. Connect a precision thermometer (accuracy of 0.1°C) to the unused
terminal beside the TC Input terminals.
2. Allow 5 minutes for the temperature to equalize.
3. Using the temperature indicated by the precision thermometer, input an
equivalent 1 mV/°C signal to the TC Input terminals.
4.17 Set the OUTPUT CAL switch (#1) ON and then OFF.
4.18 Set the BASIC CAL switch (#3) and FIELD CAL switch (#2) OFF. [Output
increases to -0.8 mA, 3.5 mA, or -0.4 V nominal, or more]
4.19 Perform a Field Calibration. (See Section 1.0)
Basic Calibration Wiring
Step 4.1
Steps 4.3 to 4.15
Step 4.16
Step 4.17
Step 4.18
4.0 Basic Calibration
Note: The nominal output value for the various output ranges are designated in the
following order: (0 to 20 mA, 4 to 20 mA, 0 to 10 VDC)
The Ice Point Calibration should only be performed with an ambient temperature
between 21°C and 29°C. This Calibration was performed on the unit at the factory
during the Basic Calibration and generally does not need to be done again. The Ice
Point Compensation can be adjusted through this calibration. The Ice Point Calibration
procedure is described below.
Note: Calibration can be aborted by setting the BASIC CAL switch(#3) OFF prior to
the setting of the OUTPUT CAL switch OFF. (Step 3.6)
3.1 Connect a precision mV source with an accuracy of 0.02% to Terminal #7 TC+
Input and Terminal #8 TC- Input. Set the OUTPUT CAL switch (#1) and ICE PT
EN/DIS switch (#4) OFF. Set the BASIC CAL (#3) and FIELD CAL (#2)
switches ON. The positions of switches #5 thru #10 are not relevant for this
calibration procedure.
3.2 Connect a precision thermometer (accuracy of 0.1°C) to the unused terminal (#9)
beside the TC Input terminals.
3.3 Apply power and allow a 30 minute warm-up period. [Output goes to -0.9 mA,
3.4 mA, or -0.5V nominal]
3.4 Using the temperature indicated by the precision thermometer, input an equivalent
1 mV/°C signal to the TC Input terminals and wait 5 seconds.
3.5 Set the OUTPUT CAL switch (#1) ON and then OFF.
3.6 Set the BASIC CAL switch (#3) and FIELD CAL switch (#2) OFF. [Output
increases to -0.8 mA, 3.5 mA, or -0.38 V nominal, or more]
Step 3.1
Step 3.5
Step 3.5
Step 3.6
Ice Point Calibration Wiring
3.0 Ice Point Calibration

787
H
1-717-767-6511
ORDERING INFORMATION
MODEL NO. DESCRIPTION PART NUMBER
ITMA Intelligent Thermocouple Module ITMA3035
APPLICATION
The temperature of certain industrial plastics is critical for melt flow of
an injection molding process. Different plastic grades and the complexity
of the mold determine required temperatures for efficient material flow.
The master control room monitors the temperature of the melt flow of
each injection mold machine. They will determine whether the operator
may start the process on his machine or override the injection molding
process. The injection molding machines are located throughout the plant,
posing a thermocouple signal loss problem from long cable runs. The
ITMA DC powered unit is mounted at the machine and uses the local 24
VDC for power. The signal loss problem is solved using the 4 to 20 mA
analog output for the long cable run to the master control room.
G Rail Installation
To install the ITMA on
a “G” style DIN rail,
angle the module so that
the upper groove of the
“foot” catches under the
lip of the top rail. Push
the module toward the
rail until it snaps into
place. To remove a
module from the rail,
push up on the bottom of
the module while pulling
out away from the rail.
T Rail Installation
To install the ITMA on a
“T” style rail, angle the
module so that the top groove
of the “foot” is located over
the lip of the top rail. Push
the module toward the rail
until it snaps into place. To
remove a module from the
rail, insert a screwdriver into
the slot on the bottom of the
“foot”, and pry upwards on
the module until it releases
from the rail.
INSTALLATION
The unit is equipped with a universal mounting foot for attachment to standard DIN style mounting rails,
including G profile rail according to EN50035 - G32 , and top hat (T) profile rail according to EN50022 - 35 x 7.5
and 35 x 15. The unit should be installed in a location that does not exceed the maximum operating temperature
and provides good air circulation. Placing the unit near devices that generate excessive heat should be avoided.

788
H
www.redlion.net
zALLOWS COMMUNICATIONS BETWEEN RS232 CONTROL
EQUIPMENT AND PRODUCTS WITH RS485 SERIAL
COMMUNICATIONS
zWIDE DC INPUT POWER RANGE (+9 to 32 VDC)
zHALF DUPLEX (RS485) AND FULL DUPLEX (RS422)
zLED INDICATION FOR RXD, TXD, and POWER
zUNIVERSAL MOUNTING FOOT FOR DIN RAIL INSTALLATION
DESCRIPTION
The ICM4 Serial Converter Module provides the capability of interfacing
equipment with RS485 serial communications to equipment with RS232
communications. Data format of the RS232 and RS485 equipment must be
the same.
For full duplex (RS422), the DIP switch on the side of the module must be in
the RS422 position. For half duplex (RS485), the DIP switch must be in the
RS485 position. In half duplex mode, the RS485 driver is enabled using the
leading edge of the first character transmitted (RXD input). After the last
character transmits, the converter waits one character time (at 9600 baud) to
disable the RS485 driver.
There are 3 LED’s that can be viewed from the front of the converter module.
A green power LED indicates power is on, a red RS232 TXD LED flashes when
the module is transmitting, and a green RS232 RXD LED flashes when the
module is receiving.
An external DC power source (+9 to 32 VDC) is required to power the ICM4.
The external power source and serial communications connections are made via
a 12 position removable terminal block located on the front of the module.
The unit is equipped with a universal mounting foot for attachment to
standard DIN style mounting rails, including top hat profile rail according to
EN50022 - 35 x 7.5 and 35 x 15, and G profile rail according to EN50035 - G32.
SAFETY SUMMARY
All safety related regulations, local codes and instructions that appear in the
manual or on equipment must be observed to ensure personal safety and to
prevent damage to either the instrument or equipment connected to it. If
equipment is used in a manner not specified by the manufacturer, the protection
provided by the equipment may be impaired.
SPECIFICATIONS
1. POWER: +9 to 32 VDC @ 75 mA maximum. Above 26 VDC, derate max.
operating temperature to 40°C. Power supply must be Class 2 or SELV rated.
2. RS232 VOLTAGES:
Receive Data Pin: ± 30 VDC max.
Mark Condition: ≤ 0.8 VDC
Space Condition: ≥ 2.4 VDC
Transmit Data Pin:
Mark Condition: −8 VDC (typ.)
Space Condition: +8 VDC (typ.)
3. RS485 VOLTAGES:
Differential Output Voltage: ± 5 VDC max. under no load
Differential Input Voltage: ± 5 VDC max.
Mark Condition: ≤ −0.2 VDC
Space Condition: ≥ +0.2 VDC
RS485 Drive Capability: Up to 32 RS485 receivers connected in parallel.
RS485 Drive Disable Time: 4 msec. max.
4. MAXIMUM CABLE LENGTH:
RS232: 50 feet
RS485: 4000 feet
5. BAUD RATE: 9600 min., 19200 max.
6. CERTIFICATIONS AND COMPLIANCES:
SAFETY
UL Recognized Component, File #E179259, UL3101-1, CSA C22.2 No.
1010-1
Recognized to U.S. and Canadian requirements under the Component
Recognition Program of Underwriters Laboratories, Inc.
IECEE CB Scheme Test Certificate # US/5141B/UL,
CB Scheme Test Report # 01ME11540-0702001
Issued by Underwriters Laboratories, Inc.
IEC 61010-1, EN 61010-1: Safety requirements for electrical
equipment for measurement, control and laboratory use, Part 1.
ELECTROMAGNETIC COMPATIBILITY
Refer to EMC Installation Guidelines for additional information.
MODEL ICM4 - SERIAL CONVERTER MODULE (RS232C/RS485)
DIMENSIONS In inches (mm)
CAUTION: Risk of Danger.
Read complete instructions prior to
installation and operation of the unit.
UL Recognized Component,
File # E179259
900 MHz ± 5 MHz
Immunity to EN 50082-2
200 Hz, 50% duty cycle
Electrostatic discharge EN 61000-4-2 Level 2; 4 Kv contact
Level 3; 8 Kv air
Electromagnetic RF fields EN 61000-4-3 Level 3; 10 V/m
80 MHz - 1 GHz
Fast transients (burst) EN 61000-4-4 Level 4; 2 Kv I/O
Level 3; 2 Kv power
RF conducted interference EN 61000-4-6 Level 3; 10 V/rms
150 KHz - 80 MHz
Simulation of cordless telephone ENV 50204 Level 3; 10 V/m
Emissions to EN 50081-1
RF interference EN 55022 Enclosure class B

789
H
1-717-767-6511
SPECIFICATIONS (Cont’d)
7. ENVIRONMENTAL CONDITIONS:
Operating Temperature Range: 0 to 50°C. Derate max. operating
temperature to 40°C above 26 VDC.
Storage Temperature: -40 to + 75°C
Operating and Storage Humidity: 85% max.relative humidity
(non-condensing) from 0 to 50°C
Altitude: Up to 2000 meters
8. CONSTRUCTION: Case body is black, high impact plastic. Installation
Category I, Pollution Degree 2.
9. MOUNTING: Standard DIN rail top hat (T) profile rail according to
EN50022- 35 X 7.5 and 35 X 15
10. WEIGHT: 3.2 oz. (90.7 g)
EMC INSTALLATION GUIDELINES
Although this unit is designed with a high degree of immunity to
ElectroMagnetic Interference (EMI), proper installation and wiring methods
must be followed to ensure compatibility in each application. The type of
electrical noise, source or coupling method into the unit may be different for
various installations. In extremely high EMI environments, additional measures
may be needed. Cable length, routing and shield termination are very important
and can mean the difference between a successful or a troublesome installation.
Listed below are some EMC guidelines for successful installation in an
industrial environment.
1. DC power to the unit should be relatively clean and within the specified
limits. Connecting power to the unit from circuits that power inductive loads
that cycle on and off, such as contactors, relays, motors, etc., should be
avoided. This will reduce the chance of noise spikes entering the DC power
connection and affecting the unit.
2. The shield (screen) pigtail connection should be made as short as possible.
The connection point for the shield depends somewhat upon the application.
Listed below are the recommended methods of connecting the shield, in
order of their effectiveness.
a. Connect the shield only at the unit to earth ground (protective earth).
b. Connect the shield to earth ground at both ends of the cable, usually when
the noise source frequency is above 1 MHz.
c. Connect the shield to common of the unit and leave the other end of the
shield unconnected and insulated from earth ground.
3. Never run Signal cables in the same conduit or raceway with AC power lines,
conductors feeding motors, solenoids, SCR controls, and heaters, etc. The
cables should be run in metal conduit that is properly grounded. This is
especially useful in applications where cable runs are long and portable two-
way radios are used in close proximity or if the installation is near a
commercial radio transmitter.
4. Signal cables within an enclosure should be routed as far away as possible
from contactors, control relays, transformers, and other noisy components.
5. In extremely high EMI environments, the use of external EMI suppression
devices, such as ferrite suppression cores, is effective. Install them on Signal
cables as close to the unit as possible. Loop the cable through the core several
times or use multiple cores on each cable for additional protection.
Install line filters on the power input cable to the unit to suppress power line
interference. Install them near the power entry point of the enclosure. The
following EMI suppression devices (or equivalent) are recommended:
Ferrite Suppression Cores for signal cables:
Fair-Rite # 0443167251 (RLC #FCOR0000)
TDK # ZCAT3035-1330A
Steward #28B2029-0A0
Line Filters for input power cables:
Schaffner # FN610-1/07 (RLC #LFIL0000)
Schaffner # FN670-1.8/07
Corcom #1VR3
Note: Reference manufacturer’s instructions when installing a line filter.
6. Long cable runs are more susceptible to EMI pickup than short cable runs.
Therefore, keep cable runs as short as possible.
TYPICAL RS422 CONNECTIONS
Notes:
1. Connect shield drain wire to earth ground.
2. Place DIP switch on the side of the ICM4 in the 422 position.
3. RS422 polarity: Terminal “A” is negative with respect to Terminal “B” in
the mark (logic 1) condition.
SIDE VIEW OF ICM4

790
H
www.redlion.net
TYPICAL CONNECTION FOR MULTIPLE UNITS
TYPICAL CONNECTION FOR SINGLE UNIT
TYPICAL RS485 CONNECTIONS
Notes:
1. Connect shield drain wire to earth ground.
2. Place DIP switch on the side of the ICM4 in the 485 position.
3. The transmit and receive data lines of the ICM4 should be wired together.
TYPICAL RS232 CONNECTIONS

791
H
1-717-767-6511
G Rail Installation
To install the ICM4
on a “G” style DIN
rail, angle the module
so that the upper
groove of the “foot”
catches under the lip of
the top rail. Push the
module toward the rail
until it snaps into
place. To remove a
module from the rail,
push up on the bottom
of the module while
pulling out away from
the rail.
T Rail Installation
To install the
ICM4 on a “T” style
rail, angle the module
so that the top groove
of the “foot” is
located over the lip of
the top rail. Push the
module toward the
rail until it snaps into
place. To remove a
module from the rail,
insert a screwdriver
into the slot on the
bottom of the “foot”,
and pry upwards on
the module until it
releases from the rail.
INSTALLATION
The unit is equipped with a universal mounting foot for attachment to standard DIN style mounting rails, including G profile rail according to EN50035
- G32 , and top hat (T) profile rail according to EN50022 - 35 x 7.5 and 35 x 15. The unit should be installed in a location that does not exceed the maximum
operating temperature and provides good air circulation. Placing the unit near devices that generate excessive heat should be avoided.
TROUBLESHOOTING
For further technical assistance, contact technical support at the
appropriate company numbers listed.
ORDERING INFORMATION
MODEL NO. DESCRIPTION PART NUMBER
ICM4 RS232/RS485 Converter Module ICM40030

792
H
www.redlion.net
DESCRIPTION
The ICM5 Serial Converter Module provides the capability of interfacing
equipment with RS485 serial communications to equipment with RS232
communications while providing three way isolation. Data format of the RS232
and RS485 equipment must be the same.
The unit can be configured for full duplex (RS422), or half duplex (RS485)
operation. In half duplex mode, the RS485 driver is automatically enabled using
the leading edge of the first character that is received on the RS232 side. After
the last character is received, the converter waits one character time (at the
selected baud rate) to disable the RS485 driver.
An external DC power source (+9 to 26 VDC) is required to power the ICM5.
The external power source and RS485 communications connections are made
via a 7-position removable terminal block located on the front of the module. A
modular RS485 connector is also provided for fast and efficient connection to
other Red Lion devices that use a modular connector. The RS232 connection is
provided via a standard D-SUB 9-pin male connector. The ICM5 can be
configured for DTE or DCE operation, allowing the use of modem or null-
modem cables.
There are 3 LEDs that can be viewed from the front of the converter module.
A green power LED indicates power is on, a red RS232 TXD LED flashes when
the module is transmitting, and a green RS232 RXD LED flashes when the
module is receiving.
The unit is equipped with a universal mounting foot for attachment to
standard DIN style mounting rails, including top hat profile rail according to EN
50 022 - 35x7.5 and 35x15, and G profile rail according to EN 50 035 - G32.
SAFETY SUMMARY
All safety related regulations, local codes and instructions that appear in the
manual or on equipment must be observed to ensure personal safety and to
prevent damage to either the instrument or equipment connected to it. If
equipment is used in a manner not specified by the manufacturer, the protection
provided by the equipment may be impaired.
SPECIFICATIONS
1. POWER: +9 to 26 VDC @ 125 mA maximum. 85 mA typical
Power Supply must be Class 2 or SELV rated.
2. RS232 VOLTAGES:
Receive Data Pin: ± 30 VDC max.
Mark Condition: ≤ 0.8 VDC
Space Condition: ≥ 2.4 VDC
Transmit Data Pin:
Mark Condition: -8 VDC (typ.)
Space Condition: +8 VDC (typ.)
3. RS485 VOLTAGES:
Differential Output Voltage: ± 5 VDC max. under no load
Differential Input Voltage: ± 5 VDC max.
Mark Condition: ≤ -0.2 VDC
Space Condition: ≥ +0.2 VDC
RS485 Drive Capability: Up to 32 RS485 receivers connected in parallel
RS485 Drive Disable Time: one character time (at the set baud rate)
4. MAXIMUM CABLE LENGTH:
RS232: 50 feet (15.24 m)
RS485: 4000 feet (1219.2 m)
5. BAUD RATE: 9600 min., 115200 max.
6. ISOLATION: 1000 VDC
7. ENVIRONMENTAL CONDITIONS:
Operating Temperature Range: 0 to 50°C.
Storage Temperature: -40 to + 75°C
Operating and Storage Humidity: 85% max. relative humidity
(non-condensing) from 0 to 50°C
Altitude: Up to 2000 meters
MODEL ICM5 – THREE WAY ISOLATED SERIAL CONVERTER MODULE
(RS232C/RS485)
DIMENSIONS In inches (mm)
CAUTION:
Read complete instructions prior to
installation and operation of the unit.
z9 PIN D-SUB CONNECTOR FOR RS232 CONNECTION
zSWITCHABLE TERMINATION AND BIASING RESISTORS
zMODULAR RJ JACK OR SCREW TERMINAL FOR RS485
CONNECTION
zALLOWS COMMUNICATIONS BETWEEN RS232 CONTROL
EQUIPMENT AND PRODUCTS WITH RS422/RS485 SERIAL
COMMUNICATIONS
zTHREE WAY ISOLATION PROTECTS SERIAL EQUIPMENT FROM
GROUND LOOPS (1000 VDC)
zAUTOMATIC RS485 DRIVER CONTROL
zDIP SWITCH SELECTABLE BAUD RATES 9600, 19200, 38400,
57600, 115200
zWIDE DC INPUT POWER RANGE (+9 to 26 VDC)
zHALF DUPLEX (RS485) AND FULL DUPLEX (RS422)
zLED INDICATION FOR RXD, TXD, and POWER
zUNIVERSAL MOUNTING FOOT FOR DIN RAIL INSTALLATION
zSELECTABLE DTE & DCE OPERATION WORKS WITH ANY
RS232 CABLE
UL Recognized Component,
File # E179259

793
H
1-717-767-6511
8. CERTIFICATIONS AND COMPLIANCES:
SAFETY
UL Recognized Component, File #E179259, UL3101-1, CSA 22.2 No. 1010-1
Recognized to U.S. and Canadian requirements under the Component
Recognition Program of Underwriters Laboratories, Inc.
IECEE CB Scheme Test Certificate #US/5141A/UL,
CB Scheme Test Report #01ME11540-0702001
Issued by Underwriters Laboratories, Inc.
IEC 61010-1, EN 61010-1: Safety requirements for electrical equipment
for measurement, control, and laboratory use, Part 1.
ELECTROMAGNETIC COMPATIBILITY
Note:
1. This device was designed for installation in an enclosure. To avoid
electrostatic discharge to the unit in environments with static levels above
4 Kv, precautions should be taken when the device is mounted outside an
enclosure. When working in an enclosure, (ex. making adjustments, setting
switches etc.) typical anti-static precautions should be observed before
touching the unit.
Refer to EMC Installation Guidelines for additional information.
9. CONSTRUCTION: Case body is black, high impact plastic. Installation
Category I, Pollution Degree 2.
10. MOUNTING: Standard DIN rail top hat (T) profile rail according to
EN50022- 35 X 7.5 and 35 X 15
11. WEIGHT: 3.3 oz. (93.6 g)
Immunity to EN 50082-2
Electrostatic discharge EN 61000-4-2 Level 2; 4 Kv contact1
Level 3; 8 Kv air1
Electromagnetic RF fields EN 61000-4-3 Level 3; 10 V/m
80 MHz - 1 GHz
Fast transients (burst) EN 61000-4-4 Level 4; 2 Kv I/O
Level 3; 2 Kv power
RF conducted interference EN 61000-4-6 Level 3; 10 V/rms
150 KHz - 80 MHz
Emissions to EN 50081-1
RF interference EN 55022
Power mains class B
Enclosure class B
EMC INSTALLATION GUIDELINES
Although this unit is designed with a high degree of immunity to
ElectroMagnetic Interference (EMI), proper installation and wiring methods
must be followed to ensure compatibility in each application. The type of
electrical noise, source or coupling method into the unit may be different for
various installations. In extremely high EMI environments, additional measures
may be needed. Cable length, routing and shield termination are very important
and can mean the difference between a successful or a troublesome installation.
Listed below are some EMC guidelines for successful installation in an
industrial environment.
1. DC power to the unit should be relatively clean and within the specified
limits. Connecting power to the unit from circuits that power inductive loads
that cycle on and off, such as contactors, relays, motors, etc., should be
avoided. This will reduce the chance of noise spikes entering the DC power
connection and affecting the unit.
2. The shield (screen) pigtail connection should be made as short as possible.
The connection point for the shield depends somewhat upon the application.
Listed below are the recommended methods of connecting the shield, in
order of their effectiveness.
a. Connect the shield only at the unit to earth ground (protective earth).
b. Connect the shield to earth ground at both ends of the cable, usually when
the noise source frequency is above 1 MHz.
c. Connect the shield to common of the unit and leave the other end of the
shield unconnected and insulated from earth ground.
3. Never run Signal cables in the same conduit or raceway with AC power lines,
conductors feeding motors, solenoids, SCR controls, and heaters, etc. The
cables should be run in metal conduit that is properly grounded. This is
especially useful in applications where cable runs are long and portable two-
way radios are used in close proximity or if the installation is near a
commercial radio transmitter.
4. Signal cables within an enclosure should be routed as far away as possible
from contactors, control relays, transformers, and other noisy components.
5. In extremely high EMI environments, the use of external EMI suppression
devices, such as ferrite suppression cores, is effective. Install them on Signal
cables as close to the unit as possible. Loop the cable through the core several
times or use multiple cores on each cable for additional protection.
Install line filters on the power input cable to the unit to suppress power line
interference. Install them near the power entry point of the enclosure. The
following EMI suppression devices (or equivalent) are recommended:
Ferrite Suppression Cores for signal cables:
Fair-Rite # 0443167251 (RLC #FCOR0000)
TDK # ZCAT3035-1330A
Steward #28B2029-0A0
Line Filters for input power cables:
Schaffner # FN610-1/07 (RLC #LFIL0000)
Schaffner # FN670-1.8/07
Corcom #1VR3
Note: Reference manufacturer’s instructions when installing a line filter.
6. Long cable runs are more susceptible to EMI pickup than short cable runs.
Therefore, keep cable runs as short as possible.
BLOCK DIAGRAM

794
H
www.redlion.net
SIDE VIEW OF ICM5 TYPICAL RS232 CONNECTIONS
DIP SWITCH SETTINGS
Top Bank of 10 Switches
Switches 1-5 - BAUD
Select the appropriate baud rate. This
adjusts the time delay for the automatic
RS485 driver controller. Only one of the
baud switches should be in the ON position.
Switches 6-7 - PULL UP / PULL DOWN
These switches connect 4.7 KΩbiasing resistors to the A and B lines of the
485 receiver. To minimize loading of the network, these should only be used if
no other device in the system provides biasing.
Switches 8-9 - OFF 4 WIRE / ON 2 WIRE
These switches can be used to internally jumper the A and B lines of the
RS485 driver and receiver together. This allows 2-wire operation without the
use of external jumper wires. To use the RJ-11 connector, the ICM5 must be in
2-wire mode. Both switches should be in the same position.
Switch 10 - 120 ΩΩTERMINATION
This switch connects a 120 Ωresistor across the A and B lines of the RS485
receiver. The use of the resistor prevents signal reflection, or echoing, at high
baud rates, over long distances. This should only be turned on if the ICM5 is
the first, or last, device in a multi-drop network that is experiencing reflection
due to long cable distances.
Bottom Bank of 7 Switches
Switches 1-2 - OFF 422 / ON 485
These switches enable and disable the automatic RS485 driver control. In the
422 position, the driver is always enabled, allowing 4-wire full duplex
operation. In the 485 position, the driver is enabled as soon as characters are
received on the RS232 side. When the RS485 driver has transmitted the last
character, it waits one character time (at the selected baud rate), and then enters
a high-impedance state. The receiver is also enabled and disabled in a similar
fashion to prevent transmitted characters from being echoed back. This allows
2-wire, half-duplex operation, without the use of handshake lines. Both
switches should be in the same position.
Switch 3 - N/C
No Connection
Switches 4-7 - OFF DCE / ON DTE
These switches configure the RS232 port to act as a DCE or DTE device.
With all of the switches in the DCE position, pin 2 of the DB-9 connector is the
RS-232 receiver, and pin 3 is the RS232 transmitter. DTE configures pin 2 as
the transmitter, and pin 3 as the receiver. These switches allow the use of
modem or null-modem cables. All of these switches should be in the DCE or
DTE position. No other combinations are valid.
TYPICAL RS422 CONNECTIONS
Notes:
1. Connect shield (drain wire) to earth ground.
2. RS422 polarity: Terminal “A” is negative with respect to Terminal “B” in the
mark (logic 1) condition.
DEFAULT SETTINGS
BAUD RATE 9600
DCE
2 WIRE \ RS485
NO TERMINATION
NO PULL-UP OR PULL DOWN
DTE
DCE
TYPICAL RS485 CONNECTIONS
Note:
Connect shield (drain wire)
to earth ground.
Note:
Connect shield (drain wire) to earth ground.
Note:
Connect shield (drain wire) to earth ground.
*
- Application Dependent
*
- Application Dependent
*
- Application Dependent
*
- Application Dependent

795
H
1-717-767-6511
CONNECTING TO PARADIGM INTERFACE
INSTALLATION
The unit is equipped with a universal mounting foot for attachment to
standard DIN style mounting rails, including G profile rail according to
EN50035 - G32 , and top hat (T) profile rail according to EN50022 - 35 x 7.5
and 35 x 15. The unit should be installed in a location that does not exceed the
maximum operating temperature and provides good air circulation. Placing the
unit near devices that generate excessive heat should be avoided.
G Rail Installation
To install the ICM5 on a "G" style DIN rail, angle the module so that the
upper groove of the "foot" catches under the lip of the top rail. Push the
module toward the rail until it snaps into place. To remove a module from the
rail, push up on the bottom of the module while pulling out away from the rail.
T Rail Installation
To install the ICM5 on a "T" style rail, angle the module so that the top
groove of the "foot" is located over the lip of the top rail. Push the module
toward the rail until it snaps into place. To remove a module from the rail,
insert a screwdriver into the slot on the bottom of the "foot", and pry upwards
on the module until it releases from the rail.
TYPICAL RS485 CONNECTIONS USING RJ-11
TROUBLESHOOTING
For further technical assistance, contact technical support at the
appropriate company numbers listed.
MODEL NO. DESCRIPTION PART NUMBER
CBJ
ICM5
6" RJ-11 Jumper Cable
RS232/RS485 Converter Module
CBJ11BD5
ICM50000
ORDERING INFORMATION
TYPICAL CONNECTION FOR RS485 DEVICES
*
- Application Dependent
*
- Application Dependent
*
- Application Dependent

796
H
www.redlion.net
zCOMMUNICATION GATEWAY FOR RED LION PRODUCTS
zPROTOCOLS AVAILABLE: RS232, RS485 AND ETHERNET
zPROGRAMMABLE VIA CRIMSON SOFTWARE
zUSB PROGRAMMING PORT
zEXTENSIVE BUILT-IN DRIVER LIST ALLOWS EASY DATA
MAPPING TO PLCs, PCs, AND SCADA SYSTEMS
z10 BASE-T/100 BASE-TX ETHERNET CONNECTION CAN
CONNECT TO AN UNLIMITED NUMBER OF DEVICES VIA FOUR
PROTOCOLS SIMULTANEOUSLY
GENERAL DESCRIPTION
The ICM8 is designed to act as a communication gateway offering multiple
protocol conversion for any Red Lion Product. With two serial ports (one RS232
and one RS485) and a 10 Base-T/100 Ethernet Port, the unit performs protocol
conversion, allowing disparate devices to communicate seamlessly with one
another. Programming the unit can be accomplished via the RS232 or the USB
Port using Crimson Software. It is important to note that this device is designed
to function with Red Lion Product and will not offer protocol conversion if a
Red Lion Products is not connected to at least one of the serial ports.
The ICM8’S DIN rail mounting saves time and panel space and snaps easily
onto standard top hat (T) profile DIN rail.
SOFTWARE
The ICM8 is programmed with Windows®compatible Crimson 2.0 software.
The software is an easy to use graphical interface which can be purchased as part
of a kit that includes a manual and cables, or downloaded free of charge from
www.redlion.net.
SAFETY SUMMARY
All safety related regulations, local codes and instructions that appear in the
manual or on equipment must be observed to ensure personal safety and to
prevent damage to either the instrument or equipment connected to it. If
equipment is used in a manner not specified by the manufacturer, the protection
provided by the equipment may be impaired.
Do not use the controller to directly command motors, valves, or other
actuators not equipped with safeguards. To do so can be potentially harmful to
persons or equipment in the event of a fault to the controller. An independent and
redundant temperature limit indicator with alarm outputs is strongly
recommended.
SPECIFICATIONS
1. POWER: 24 VDC ± 10% 200 mA max. Must use a Class 2 or SELV rated
power supply.
2. COMMUNICATIONS:
USB/PG Port: Adheres to USB specification 1.1. Device only using Type B
connection.
Serial Ports: Format and Baud Rates for each port are individually software
programmable up to 115,200 baud.
RS232/PG Port: RS232 port via RJ12
COMMS Ports: RS485 port via RJ11
Ethernet Port: 10 BASE-T / 100 BASE-TX
3. LEDs:
STS – Status LED indicates condition of ICM8.
TX/RX – Transmit/Receive LEDs show serial activity.
Ethernet – Link and activity LEDs.
4. MEMORY:
On-board User Memory: 4 Mbytes of non-volatile Flash memory.
On-board SDRAM: 2 Mbytes
MODEL ICM8 – COMMUNICATION GATEWAY
CAUTION: Risk of Danger.
Read complete instructions prior to
installation and operation of the unit.
DIMENSIONS In inches (mm)

797
H
1-717-767-6511
5. CERTIFICATIONS AND COMPLIANCES:
SAFETY
IEC 1010-1, EN 61010-1: Safety requirements for electrical equipment for
measurement, control, and laboratory use, Part 1.
ELECTROMAGNETIC COMPATIBILITY
Emissions and Immunity to EN 61326: Electrical Equipment for
Measurement, Control and Laboratory use.
Notes:
1. Criterion A: Normal operation within specified limits.
2. Criterion B: Temporary loss of performance from which the unit self-
recovers.
3. This device was designed for installation in an enclosure. To avoid
electrostatic discharge to the unit in environments with static levels above
4 kV precautions should be taken when the device is mounted outside an
enclosure. When working in an enclosure (ex. making adjustments, setting
switches etc.) typical anti-static precautions should be observed before
touching the unit.
6. ENVIRONMENTAL CONDITIONS:
Operating Temperature Range: 0 to 50°C
Storage Temperature Range: -30 to +70°C
Operating and Storage Humidity: 80% max relative humidity,
non-condensing, from 0 to 50°C
Altitude: Up to 2000 meters
7. CONSTRUCTION: Case body is black high impact plastic and stainless
steel. Installation Category I, Pollution Degree 2.
8. POWER CONNECTION: Removable wire clamp screw terminal block.
Wire Gage Capacity: 24 AWG to 12 AWG
Torque: 4.45 to 5.34 in/lb (0.5 to 0.6 N-m)
9. MOUNTING: Snaps onto standard DIN style top hat (T) profile mounting
rails according to EN50022 -35 x 7.5 and -35 x 15.
10. WEIGHT: 12.3 oz (348g)
HARDWARE
INSTALLATION
Figure 1 - Attach ICM8 To DIN Rail
POWER SUPPLY REQUIREMENTS
It is very important that the power supply is mounted correctly if the unit is
to operate reliably. Please take care to observe the following points:
– The power supply must be mounted close to the unit, with usually not more
than 6 feet (1.8 m) of cable between the supply and the ICM8. Ideally, the
shortest length possible should be used.
– The wire used to connect the ICM8’s power supply should be at least 22-
gage wire. If a longer cable run is used, a heavier gage wire should be used.
The routing of the cable should be kept away from large contactors,
inverters, and other devices which may generate significant electrical
noise.
– A power supply with a Class 2 or SELV rating is to be used. A Class 2 or
SELV power supply provides isolation to accessible circuits from
hazardous voltage levels generated by a mains power supply due to single
faults. SELV is an acronym for “safety extra-low voltage.” Safety extra-
low voltage circuits shall exhibit voltages safe to touch both under normal
operating conditions and after a single fault, such as a breakdown of a layer
of basic insulation or after the failure of a single component has occurred.
Immunity to Industrial Locations:
Electrostatic discharge EN 61000-4-2 Criterion B 3
4 kV contact discharge
8 kV air discharge
Electromagnetic RF fields EN 61000-4-3 Criterion A
10 V/m
Fast transients (burst) EN 61000-4-4 Criterion B
2 kV power
1 kV signal
Surge EN 61000-4-5 Criterion A
RF conducted interference EN 61000-4-6 Criterion A
3 V/rms
Emissions:
Emissions EN 55011 Class A
1kV L-L,2 kV
L&N-E power

798
H
www.redlion.net
EMC INSTALLATION GUIDELINES
Although Red Lion Controls Products are designed with a high degree of
immunity to Electromagnetic Interference (EMI), proper installation and wiring
methods must be followed to ensure compatibility in each application. The type
of the electrical noise, source or coupling method into a unit may be different for
various installations. Cable length, routing, and shield termination are very
important and can mean the difference between a successful or troublesome
installation. Listed are some EMI guidelines for a successful installation in an
industrial environment.
1. To reduce the chance of noise spikes entering the unit via the power lines,
connections should be made to a clean source. Connecting to circuits that also
power loads such as contactors, relays, motors, solenoids etc. should be avoided.
2. The unit should be mounted in a metal enclosure, which is properly connected
to protective earth.
3. Use shielded (screened) cables for all Signal and Control inputs. The shield
(screen) pigtail connection should be made as short as possible. The
connection point for the shield depends somewhat upon the application.
Listed below are the recommended methods of connecting the shield, in order
of their effectiveness.
a. Connect the shield to earth ground (protective earth) at one end where the
unit is mounted.
b. Connect the shield to earth ground at both ends of the cable, usually when
the noise source frequency is over 1 MHz.
c. Connect the shield to common of the Data Station and leave the other end
of the shield unconnected and insulated from earth ground.
4. Never run Signal or Control cables in the same conduit or raceway with AC
power lines, conductors feeding motors, solenoids, SCR controls, and
heaters, etc. The cables should be run through metal conduit that is properly
grounded. This is especially useful in applications where cable runs are long
and portable two-way radios are used in close proximity or if the installation
is near a commercial radio transmitter. Also, Signal or Control cables within
an enclosure should be routed as far away as possible from contactors, control
relays, transformers, and other noisy components.
5. Long cable runs are more susceptible to EMI pickup than short cable runs.
Therefore, keep cable runs as short as possible.
6. In extremely high EMI environments, the use of external EMI suppression
devices is effective. The following EMI suppression devices (or equivalent)
are recommended:
Ferrite Suppression Cores for signal and control cables:
Fair-Rite part number 0443167251 (RLC part number FCOR0000)
TDK part number ZCAT3035-1330A
Steward part number 28B2029-0A0
Line Filters for input power cables:
Schaffner part number FN610-1/07 (RLC part number LFIL0000)
Schaffner part number FN670-1.8/07
Corcom part number 1 VR3
Visit RLC's web site at www.redlion.net for more information on EMI
guidelines, Safety and CE issues as they relate to Red Lion Controls products.
WIRING
POWER CONNECTION
PROGRAMMING PORTS
RS232/PG
USB/PG

799
H
1-717-767-6511
Standard Ethernet cable
* Use appropriate communications cable.
See Ordering Information for descriptions of
the available cables.
PORT 3 - ETHERNET CONNECTION
RS485
COMMUNICATION PORTS
RS232/PG

800
H
www.redlion.net
ICM8 PORT PIN OUTS
TROUBLESHOOTING
1. This module is designed to operate with Red Lion panel meters only.
Please make sure a Red Lion product is connected to either one of the
two serial ports for the gateway to be active.
2. The Ethernet port is equipped with data LEDs. If they are blinking,
the converter is active and the data is available at the port. Please
verify the receiving equipment is properly programmed.
3. If for any reason you have trouble operating, connecting, or simply
have questions concerning your new ICM8, contact Red Lion’s
technical support. For contact information, refer to the back page of
this bulletin for phone and fax numbers.
EMAIL: techsupport@redlion.net
Web Site: http://www.redlion.net
CONFIGURING THE ICM8
The ICM8 is configured using Crimson 2.0 software. Crimson 2.0 is
available as a free download from Red Lion’s website, or it can be ordered on
CD. Updates to Crimson 2.0 for new features and drivers are posted on the
website as they become available. By configuring the ICM8 using the latest
version of Crimson 2.0, you are assured that your unit has the most up to date
feature set. Crimson 2.0 software can configure the ICM8 through the
RS232/PG port or USB/PG port. The USB/PG port is connected using a
standard USB cable with a Type B connector.
The driver needed to use the USB port will be installed with Crimson 2.0.
The RS232/PG port uses a programming cable made by Red Lion to connect to
the DB9 COM port of your computer. If making your own cable, refer to the
“ICM8 Port Pin Outs” for wiring information.
CABLES AND DRIVERS
Red Lion has a wide range of cables and drivers for use with many different
communication types. A list of these drivers and cables along with pin outs is
available from Red Lion’s website. New cables and drivers are added on a
regular basis. If making your own cable, refer to the “ICM8 Port Pin Outs” for
wiring information.
ETHERNET COMMUNICATIONS
Ethernet communications can be established at either 10 BASE-T or 100
BASE-TX. The Crimson 2.0 manual contains additional information on
Ethernet communications.
RS232 PORTS
The ICM8 has one RS232 port. The port can be used for programming or
communications.
COMMUNICATING WITH THE ICM8

801
H
1-717-767-6511
RS485 PORT
The ICM8 has one RS485 port.
Note: All Red Lion devices connect A to A and B to B, except for Paradigm
devices. Refer to www.redlion.net for additional information.
LEDS
STS – STATUS LED
The green Status LED provides information regarding the state of the ICM8.
This includes indication of the various stages of the start-up routine (power-up),
and any errors that may occur.
Startup Routing
USER COMMUNICATION PORTS - TX/RX LEDS
ETHERNET LEDS
1Contact your Red Lion distributor or visit our website for complete selection.
2Use this part number to purchase Crimson on CD with a printed manual, USB
cable, and RS-232 cable. Otherwise, download free of charge from www.redlion.net.
3Red Lion offers RJ modular jack adapters. Refer to the DR literature for
complete details.
ORDERING INFORMATION
DRxxxxxx
DIN Rail Mountable Adapter Products 3
DR
CBLxxxxx
Communications Cables 1
CBLUSB00USB Cable
ICM8
CBLPROG0RS-232 Programming Cable
CBL
SFCRM200
Crimson 2.0 2, Manual and Download Cable
SFCRM2
PSDRxxxxDIN Rail Power SupplyPSDR
ICM80000
PART NUMBERDESCRIPTIONMODEL NO.
Communication Gateway
INDICATION
Rapidly Flashing
Steady ICM8 is operating properly
ICM8 is currently running the boot loader and/or
being flash upgraded by Crimson
LED INDICATION
GREEN Transmitting
RED Receiving
LED INDICATION
YELLOW (Solid) Link Established
YELLOW (Flashing) Network Activity
GREEN 10 BASE-T Communications
AMBER 100 BASE-T Communications

802
H
www.redlion.net
SWITCH08 - DIN RAIL MOUNTED 8 PORT ETHERNET SWITCH
UNMANAGED SWITCH REQUIRES NO CONFIGURATION
SUPPORTS 10/100 MDPS NETWORK
AUTO HALF/FULL DUPLEX NEGOTIATION
AUTO-CROSSING DETECTION SUPPORTS STANDARD AND
CROSSOVER ETHERNET CABLES
DESCRIPTION
The SWITCH08 is an eight-port Ethernet switch designed to simplify
network expansion, while improving the network’s efficiency. Eight 10/100
Base-T ports, with auto negotiation of half or full duplex connections requires
no setup, reducing installation time. The SWITCH08 also offers an
auto-crossing feature, which allows connections to be made with any
combination of standard or crossover Ethernet cables.
The SWITCH08 may be powered with two DC sources, allowing for
redundancy in critical applications. A relay output provides a warning signal if
the backup supply fails, ensuring continued operation when needed.
SAFETY SUMMARY
All safety related regulations, local codes and instructions that appear in the
literature or on equipment must be observed to ensure personal safety and to
prevent damage to either the instrument or equipment connected to it. If
equipment is used in a manner not specified by the manufacturer, the protection
provided by the equipment may be impaired.
ORDERING INFORMATION
DIMENSIONS In inches (mm)
MODEL NO. DESCRIPTION PART NUMBER
SWITCH 8-Port Ethernet Switch SWITCH08
UL Recognized Component,
File # E244362
CAUTION: Read complete instructions prior to
installation and operation of the unit.

803
H
1-717-767-6511
SPECIFICATIONS
1. POWER: 24 VDC ±20 %, 4.8 W
2. RELAY OUTPUT: Single N.C. 24 VDC @ 100 mA max.
3. LEDs:
V1+ and V2+ - On when proper voltage is present at respective terminal
Link/Act - On indicates link established; blinking indicates network activity
on the port.
100 - On indicates 100 Mbps connection established; off indicates 10 Mbps
connection.
4. ENVIRONMENTAL CONDITIONS:
Operating Temperature Range: 0 to +55°C
Storage Temperature Range: -20 to +70°C
Operating and Storage Humidity: 30-95%, non-condensing
Altitude: Up to 1500 meters
5. CONSTRUCTION: Brushed aluminum housing.
6. CONNECTIONS:
POWER: Removable wire clamp screw terminal block.
Wire Gage Capacity: 24 AWG to 12 AWG
Torque: 4.45 to 5.34 in/lb (0.5 to 0.6 N-m)
ETHERNET: 8-position RJ-45 female connector
7. MOUNTING: Snaps onto standard DIN style top hat (T) profile mounting
rails according to EN50022 -35 x 7.5 and -35 x 15.
8. CERTIFICATIONS AND COMPLIANCES:
9. WEIGHT: 0.61 lbs. (0.27 Kg)
Immunity to Industrial Locations:
Criterion BElectrostatic discharge EN 61000-4-2
Criterion A
Criterion A
Electromagnetic RF fields EN 61000-4-3
Criterion B
Criterion A
Fast transients (burst) EN 61000-4-4
Criterion A
Surge EN 61000-4-5
Class A
RF conducted interference EN 61000-4-6
Magnetic interference EN 61000-4-8
Criterion 3
Emissions EN 55022
Mechanical:
Shock IEC 60068-2-27
Storage: 50g, 11 msec period,
half-sine shock pulse
Vibration IEC 60068-2-6
Operation/Storage: 5g, 150 Hz
Fall IEC 60068-2-32
3.281 ft (1 m)
POWER
The SWITCH08 can be powered in various configurations with either one or
two +24 VDC SELV power supplies. How it is wired depends on whether or not
a backup power supply is desired for failsafe operation. (For example, if the
relay isn't used, a single power supply may be connected to +V1 only.)
NOTE: MUST USE SELV POWER SUPPLIES
RELAY OUTPUT
The N.C. relay output remains closed as long as the proper voltage is present
at both +V1 and +V2 terminals. In the event of a voltage failure at one of the
terminals, the contact is opened. This may be used to signal other systems that
one of the power supplies has failed.
MOUNTING
Mount the SWITCH08 to a grounded standard DIN rail. The switch will be
grounded once it is snapped onto the rail. Additionally the noise immunity can
be improved in environments with high electromagnetic smog by a
low-impedance connection to the functional earth through terminal 7.
NOTE: The SWITCH08 module was designed for use with
SELV in accordance with IEC 950 / EN 60950 / VDE 0805
TROUBLESHOOTING
For further technical assistance, contact technical support at the appropriate
company numbers listed.
Operation: 25g, 11 msec period,
half-sine shock pulse

804
H
www.redlion.net
This page intentionally left blank.

1-717-767-6511
SENSORS
I
The Trusted Source for
Innovative Control
Solutions
805

806 www.redlion.net
Page 813 Page 815 Page 818 Page 819
5 KHz Model Dependent 5 KHz Model Dependent
Max. Operating
Frequency
Round Proximity Round Threaded Proximity Round Amplified Proximity Space Saving Flat Pack
Proximity
NPN O. C. NPN Loaded Collector, 1 mA to
3 mA Swing NPN O. C. NPN O. C.
.040" (1 mm)
.059" (1.5 mm) to
.394" (10 mm)
Model Dependent
.040" (1 mm) .078" (2 mm)
.393" (10 mm)
8 to 30 VDC Model Dependent 10 to 30 VDC 10 to 30 VDC
N/A Mounting Brackets Mounting Brackets, Quick
Disconnect Cables Mounting Bracket and Spacer
Stainless Steel Case with
10 Foot Cable Model Dependent Stainless Steel Case High Impact Plastic Case
Counters/Rate Meters Counters/Rate Meters Counters/Rate Meters Counters/Rate Meters
64 mm (H) x 10 mm (W) Model Dependent 114 mm (H) x 19 mm (W) Model Dependent
Max. Sensing
Distance
Operating
Power
Options
Dimensions
(Height)x (Width)
Construction
Output
Description
Recommended
Installation
I
QUICK Specs
PROXIMITY SENSORS
HESS PSA SERIES PSAC PSAFP SERIES
Sensors
Page Number

8071-717-767-6511
Page 822 Page 823 Page 825 Page 827
60 Hz Greater than
50 KHz Typical 10 KHz
Magnetic: Greater than 50 KHz
Typical
Proximity: 5 KHz
Max. Operating
Frequency
Magnetic Proximity Switch Threaded Magnetic Pick-ups Amplified Magnetic Pick-ups "C" Face-Mounted Motor
Adapter Kits
SPDT Switch AC Voltage Signal NPN OC (LMPC) 5 VDC Signal
(LMPEC)
Magnetic: A/C Voltage Signal
Proximity: NPN O. C.
.125" (3 mm) Model Dependent 0.125" w/24 DP Gear Sensor Pregapped in
Ring Kits
N/A Self Powered Two Wires 9 to 30 VDC Magnetic: Self Powered
Proximity: 8 to 10 VDC
Explosion Proof
Model Available
In-Line Amplifier (ASTC)
Explosion-Proof Version
(MP75TX)
Mounting Brackets, Quick
Disconnect Cables N/A
Brass Threaded Stainless Steel Case Stainless Steel Case Cast Aluminum
w/ Junction Box
Counters/Timers Rate Meters,
100 RPM Min. Rate Meters, 25 RPM Min. Magnetic: Rate Meters
Proximity: Counters/Rate Meters
115 mm (H) x 38 mm (W) Model Dependent 102 mm (H) x 19 mm (W) Refer to Drawing
Max. Sensing
Distance
Operating
Power
Options
Dimensions
(Height)x (Width)
Construction
Output
Description
Recommended
Installation
QUICK Specs
MAGNETIC PICK-UPS
MPS MP SERIES LMP SERIES ARC RINGS
Sensors
Page Number
I

ROTARY PULSE GENERATORS
808 www.redlion.net
Page 833 Page 835 Page 837 Page 838
250 KHz 200 KHz 200 KHz 200 KHz
Max. Operating
Frequency
Motor Mount Configurations C-Face Encoders Small Thru-Bore and Shaft
Encoders Large Thru-Bore Encoders
Line Driver Line Driver
Standard: Quadrature Open
Collector, Others Include Line
Driver, Push Pull
Standard: Quadrature Open
Collector, Others Include Line
Driver, Push Pull
N/A N/A N/A N/A
5 to 28 VDC 5 to 28 VDC 5 to 28 VDC 5 to 28 VDC
Protective Cover Kit,
Various Bore Sleeves N/A Precision Shaft Couplings Flex Mount Kits, Bore Insert Kits,
Magnetic Coupling Kit
Nylon Composite Metal Aluminum Aluminum
Motor Feedback Systems Motor Feedback Systems Counters/Rate Meters Counters/Rate Meters
Refer to Drawing Refer to Drawing Refer to Drawing Refer to Drawing
Max. Sensing
Distance
Operating
Power
Options
Dimensions
(Height)x (Width)
Construction
Output
Description
Recommended
Installation
I
QUICK Specs
MOTOR FEEDBACK
MOTOR MOUNT MOTOR MOUNT LOW PROFILE LOW PROFILE
Sensors
Page Number

8091-717-767-6511
Page 839 Page 847 Page 851 Page 855
10 KHz 1 MHz 20 KHz 1 MHz
Max. Operating
Frequency
Shaft Encoders Large Thru-Bore Encoders Industrial and Heavy Duty
Encoder Size 20 and 25 Flange Encoders
Single Channel or Quadrature,
NPN O.C.
Standard: Quadrature Open
Collector, Others Include Line
Driver, Push Pull
Single Channel or Quadrature,
Current Sinking.
Standard: Quadrature Open
Collector, Others Include Line
Driver, Push Pull
N/A N/A N/A N/A
8 to 35 VDC (ZCG)
8 to 28 VDC (ZCH) 5 to 28 VDC 5 to 28 VDC 5 to 28 VDC
Precision Shaft Couplings Tether Arm Kits, Bore Insert Kits,
Magnetic Coupling Kit Precision Shaft Couplings Precision Shaft Couplings
Cast Aluminum Nylon Composite Aluminum Aluminum
Counters/Rate Meters Counters/Rate Meters Counters/Rate Meters Counters/Rate Meters
Refer to Drawing Refer to Drawing Refer to Drawing Refer to Drawing
Max. Sensing
Distance
Operating
Power
Options
Dimensions
(Height)x (Width)
Construction
Output
Description
Recommended
Installation
QUICK Specs
ROTARY PULSE GENERATORS
INDUSTRIAL DUTY INDUSTRIAL DUTY INDUSTRIAL AND
HEAVY DUTY
HEAVY DUTY ENCODER
Sensors
Page Number
I

810 www.redlion.net
Page 857 Page 839 Page 859 Page 861
200 KHz 10 KHz 125 KHz 1 KHz
Max. Operating
Frequency
Length Measurement Sensor Length Measurement Sensor Length Measurement Sensor Photo Electric Sensors
Quadrature Open Collector Single Channel or Quadrature,
Current Sinking. Quadrature, Open Collector NPN O. C.,
PNP O. C.
N/A N/A N/A
15 Foot (Reflective)
12 Inch (Proximity)
10 Foot (Opposed Beam)
5 to 28 VDC 8 to 35 VDC (ZFG)
8 to 28 VDC (ZFH) 5 to 28 VDC 10 to 30 VDC
Mounting Bracket, Various
Measuring Wheels
Single or Dual Shaft, Mounting
Bracket, Various Measuring
Wheels
Mounting Bracket Mounting Brackets, Reflectors
Nylon Composite Cast Aluminum Aluminum Plastic
Counters/Rate Meters Counters/Rate Meters Counters/Rate Meters Counters/Timers
Refer to Drawing Refer to Drawing Refer to Drawing Model Dependent
Max. Sensing
Distance
Operating
Power
Options
Dimensions
(Height)x (Width)
Construction
Output
Description
Recommended
Installation
I
QUICK Specs
LENGTH SENSORS LINEAR PHOTO EYE
MINIATURE LENGTH
SENSORS
LENGTH SENSORS LINEAR ENCODER PHOTO EYES
Sensors
Page Number

8111-717-767-6511
Page 868 Page 869 Page 878 Page 881
N/A N/A N/A Model Dependent
Max. Operating
Frequency
Pressure Sensors Various Thermocouple Sensors Various RTD Sensors Current Transformers
4 to 20 mA mV mV 0.1, 1, and 5 Amp
N/A N/A N/A N/A
8 to 33 VDC Model Dependent Model Dependent N/A
Adapter Fittings
Field Cuttable, Quick Disconnects,
Handheld, Compression, Surface,
Pipe Plug
Field Cuttable, Quick Disconnects,
Handheld, Compression, Surface,
Pipe Plug
N/A
Stainless Steel Case Model Dependent Model Dependent Plastic
Digital Panel Meters/Process
Meters Temperature Meters/Controllers Temperature Meters/Controllers Digital Panel Meters/Process
Meters
68 mm (H) x 23 mm (W) Model Dependent Model Dependent Model Dependent
Max. Sensing
Distance
Operating
Power
Options
Dimensions
(Height)x (Width)
Construction
Output
Description
Recommended
Installation
QUICK Specs
TEMPERATURE SENSORS
PRESSURE
CURRENT
TRANSDUCERS
PT SERIES THERMOCOUPLES RTDS CURRENT
TRANSFORMERS
Sensors
Page Number
I

812 www.redlion.net
Page 883 Page 889
Model Dependent 60 to 100 Hz
Max. Operating
Frequency
Current Transducers Current Switch
4 to 20 mA or 0 to 10 VDC
Model Dependent Solid State Switch
N/A N/A
N/A Self Powered
Fixed or Split Core, Model
Dependent
Fixed or Split Core, Model
Dependent
Thermoplastic Thermoplastic
Digital Panel Meters/Process
Meters Stand Alone
Model Dependent Model Dependent
Max. Sensing
Distance
Operating
Power
Options
Dimensions
(Height)x (Width)
Construction
Output
Description
Recommended
Installation
I
QUICK Specs
CURRENT TRANSDUCERS
CURRENT
TRANSDUCERS
CURRENT SWITCH
Sensors
Page Number

I
8131-717-767-6511
ODETECTS STEEL SENSING GEARS OR OTHER FERROUS
TARGETS
ONPN OPEN COLLECTOR OUTPUT
OOPERATES FROM 0 TO 10 KHz
O3/8" DIAMETER STAINLESS STEEL CASE
OEPOXY ENCAPSULATED FOR OIL, DIRT & MOISTURE
RESISTANCE
OIDEAL FOR TACHOMETRIC INPUTS
MODEL HESS - HALL EFFECT SPEED SENSOR
ORDERING INFORMATION
MODEL NO. DESCRIPTION PART NUMBER
HESS NPN O.C. Hall Effect Speed Sensor HESS0000
DIMENSIONS In inches (mm)
DESCRIPTION
The Hall Effect speed sensor (HESS) is ideal for sensing steel gears or other
ferrous targets from 0 to 10 KHz. This sensor does not have a minimum
threshold speed as does a magnetic pickup sensor. However, when the sensor is
first powered up, the output state is indeterminate (Hi or Lo) when the sensor is
not detecting metal. The unit operates from a +8 to +30 VDC power supply and
is reverse polarity protected. The sensor face can be mounted flush into metal
panels. The case is stainless steel and is supplied with 10 feet (3 M) of cable.
The stranded shield wire is not connected to the sensor circuit or case.
SPECIFICATIONS
1. POWER SUPPLY: +8 to +30 VDC @ 30 mA max.; reverse polarity
protected.
2. MAXIMUM SENSING DISTANCE: 0.040" (1 mm).
3. OUTPUT: NPN O.C. transistor; VMAX = 30 VDC; VSAT = 1 VMAX @ 30
mA max. load.
4. OPERATING TEMPERATURE RANGE: -25°C to 70°C
(-14°F to 158°F).
5. CABLE LENGTH: 10 feet (3.05 M).
6. OPERATING FREQUENCY: 0 to 10 KHz.
7. WIRE: 3 wire, 22 AWG with stranded shield wire and 100% foil coverage;
grey PVC jacket.
Color Code: Red (+VDC), Black (Comm.), White (Output).
8. CABLE STRAIN RELIEF: 10 lbs. (4.5 Kg.) for 1 minute.
Note: DO NOT adjust sensor air gap while target (gear) is moving.
TARGET SIZE
The HESS can detect gears as small as 24 D.P. or other ferrous targets with
equal or greater dimensions. The sensor is compatible with all Red Lion
Controls Sensing Gears.

I
814 www.redlion.net
ODETECTS STEEL SENSING GEARS OR OTHER FERROUS
TARGETS
ONPN OPEN COLLECTOR OUTPUT
OOPERATES FROM 0 TO 10 KHz
OIDEAL FOR RATE APPLICATIONS
MODEL PSAH - HALL EFFECT SPEED SENSOR
DIMENSIONS In inches (mm)
DESCRIPTION
The Hall Effect speed sensor (PSAH) is ideal for sensing steel gears or other
ferrous targets from 0 to 10 KHz. This sensor does not have a minimum
threshold speed as does a magnetic pickup sensor. However, when the sensor is
first powered up, the output state is indeterminate (Hi or Lo) when the sensor is
not detecting metal. The unit operates from a +8 to +30 VDC power supply and
is reverse polarity protected. The sensor face can be mounted flush into metal
panels. The case is stainless steel and is supplied with 10 feet (3 M) of cable.
The stranded shield wire is not connected to the sensor circuit or case.
SPECIFICATIONS
1. POWER SUPPLY: +8 to +30 VDC @ 30 mA max.; reverse polarity
protected.
2. MAXIMUM SENSING DISTANCE: 0.040" (1 mm).
3. OUTPUT: NPN O.C. transistor; VMAX = 30 VDC; VSAT = 1 VMAX @ 30
mA max. load.
4. OPERATING FREQUENCY: 0 to 10 KHz.
5. OPERATING TEMPERATURE RANGE: -25°C to 70°C
(-14°F to 158°F).
6. OUTPUT CABLE: Integrally potted 10 ft PVC jacketed, 3 wire, 22 AWG
conductors, with stranded shield wire and 100% foil coverage; grey PVC
jacket.
Color Code: Red (+VDC), Black (Comm.), White (NPN OC Output).
7. CONSTRUCTION: Epoxy encapsulated 0.297 sensor in 0.75" ±0.005" dia.
#304 stainless steel case.
TARGET SIZE
The PSAH can detect gears as small as 24 D.P. or other ferrous targets with
equal or greater dimensions. The sensor is compatible with all Red Lion
Controls Sensing Gears.
MODEL NO. DESCRIPTION PART NUMBER
PSAH PSAH0000
BM Block Mount 5400100
NPN O.C. Hall Effect Sensor
ORDERING INFORMATION
PSAH

I
8151-717-767-6511
OSENSE FERROUS & NON-FERROUS METAL OBJECTS TO
“ZERO SPEED”
O2-WIRE CURRENT SOURCE (NAMUR) & 3-WIRE NPN TRUE
OPEN COLLECTOR OUTPUTS
O5 SIZES & 3 SENSING DISTANCES FOR APPLICATION
VERSATILITY
OL.E.D. TARGET INDICATOR (PSA 2B, 6B, 7B, & 8B)
INDUCTIVE PROXIMITY SENSORS
DIMENSIONS In inches (mm)
PSA-1B
PSA-2B
PSA-1B & PSA-2B SPECIFICATIONS
PSA-1B PSA-2B
1. Power Supply: +5 to +30 VDC
2. Maximum Switching Frequency: 5 KHz 500 Hz
3. Output: Less than 1 mA Target Sensed; Greater
than 2.2 mA No Target.
4. Maximum Sensing Distance: 0.059" (1.5 mm) 0.394" (10 mm)
5. Wire Color Code: Brown = +VDC; Blue = Count
6. Operating Temperature: -25°C to +70°C (-14°F to +158°F)
7. Construction: NEMA 1, 3, 4, 6, 13, and IEC IP 67.
DESCRIPTION & OPERATION
Inductive Proximity Sensors detect the presence of metal objects which come
within range of their oscillating field and provide target detection to “zero
speed”. Internally, an oscillator creates a high frequency electromagnetic field
(RF) which is radiated from the coil and out from the sensor face (See Figure
1). When a metal object enters this field, eddy currents are induced into
the object.
As the metal moves closer to
the sensor, these eddy currents
increase and result in an
absorption of energy from the coil
which dampens the oscillator
amplitude until it finally stops.
MODELS PSA-1B & 2B
The 2-wire Models PSA-1B and 2B contain only the coil and oscillator
circuit (See Figure 2). With no metal object being sensed, the circuit oscillates
and draws greater than 2.2 mA of supply current. As a metal object of sufficient
size is brought into the sensing field, the oscillator amplitude dampens and
finally stops, resulting in less than 1 mA of circuit current being drawn. This
greater than 2.2 mA to less than 1 mA change in circuit current between
oscillating and non-oscillating conditions is converted into a usable voltage
signal (VS) by placing a resistor (RS) in series with the sensor leads.
Figure 2
Figure 1

I
816 www.redlion.net
+10 to +30 VDC
@ 10 mA max.
PSA-6B, 7B, & 8B
These Inductive Proximity Sensors have a maximum sensing distance of
0.059" (1.5 mm), 0.197" (5 mm) and 0.394" (10 mm) respectively, and operate
over a wide power supply range (See Specifications Below). They are each
housed in threaded metal cases and are supplied with 2 metal jam nuts for
mounting. The NPN transistor outputs are true open collector and are
compatible with most RLC counter and rate input circuits. Maximum sensing
frequencies are 2 KHz, 1 KHz, and 500 Hz respectively. In addition, the outputs
are overload and short circuit protected. These sensors are shielded for flush
mounting in metal applications.
PSA-6B, 7B, & 8B SPECIFICATIONS
In addition to the coil and oscillator circuit, the 3-wire Models PSA-6B, 7B,
and 8B each contain a Detector Circuit and NPN Transistor Output (See Figure
3). In these units, the Detector Circuit senses when the oscillator stops, and
turns on the Output Transistor which controls the load. The Detector Circuit
also turns on an integrally case mounted L.E.D., visually indicating when a
metal object is sensed.
DIMENSIONS In inches (mm)
PSA-6B
PSA-7B
PSA-8B
NOTES:
1. PSA 6B case material = #303 stainless steel.
2. PSA 7B & 8B case = chromed brass.
3. PVC Cable Jacket.
SELECTION & APPLICATION OF PROXIMITY
SENSORS
Selection of the proper proximity sensor depends on the size, material, and
spacing of the target being sensed and the sensing distance that can be
maintained. The maximum sensing distance is defined as the distance in which
the sensor is just close enough to detect a ferrous target whose diameter is equal
to or greater than the sensor diameter. In actual application, the sensing distance
should be between 50 to 80% of the maximum sensing range to assure reliable
detection. For target sizes smaller than the sensor diameter, the maximum
sensing distance can be estimated from the curve (See Figure 4). A further
reduction factor must also be applied if the target material is non-ferrous metal
(See Figure 5). Ideally, spacing between adjacent targets should be at least one
sensor diameter so that the first target completely leaves the sensors field before
the next target appears. Individual targets can still be resolved as separate
objects if this spacing is reduced to 70 or 75% of the sensor diameter, however,
this can introduce a minimum limit on sensing distance that makes adjustment
more critical. All Proximity sensors are internally shielded which allows the
sensor face to be flush mounted in metal applications without reducing sensing
distance. In applications where proximity sensors must be placed next to each
other, a distance of at least 1 sensor diameter should separate sensors to
eliminate any frequency interference (See Figure 6).
Figure 3
MAXIMUM SENSING DISTANCE REDUCTION FACTORS
Reduction in the max. sensing distance due
to decrease in diameter of ferrous targets.
Figure 4
Typical reduction factors for various non-
ferrous targets with diameters equal to or
greater than sensor diameter.
Figure 5
MINIMUM SENSOR
SPACING
Figure 6
Note: PSA-6B, 7B, and 8B outputs are NPN open collector outputs. A
PSA-6B, 7B, or 8B may be used as an input to more than 1 indicator or
control only if the respective power supplies of each unit are
“unregulated” and can load share. It is recommended to use only one
power supply for sensor power. An indicator or control with a regulated
power supply may not be paralleled.
Counter #1 and #2 both contain
unregulated +12 VDC Power
Supplies.
PSA-6B PSA-7B
1. Power Supply: +10 to +30 VDC
@ 10 mA max.
REVERSE POLARITY PROTECTION
2 KHz 1 KHz 500 Hz
3. Output: NPN Open Collector Output,
Overload and Short Circuit protected.
VSAT = 1.8 V @
200 mA max. load
4. Maximum Sensing Distance: 0.059" (1.5 mm) 0.197" (5 mm) 0.394" (10 mm)
5. Wire Color Code: Brown = +VDC; Blue = Common; Black = Output
PSA-8B
6. Operating Temperature: -25°C to +70°C (-14°F to +158°F)
7. Construction: NEMA 1, 3, 4, 6, 13 and IEC IP 67
2. Maximum Switching Frequency:
VSAT = 1.8 V @
150 mA max. load

I
8171-717-767-6511
TYPICAL HOOK-UPS
APPLICATION SELECTION CHART
PSA-1B PSA-2B PSA-6B PSA-7B PSA-8B
MAX. SENSING DISTANCE 0.059" (1.5 mm) 0.394" (10 mm) 0.059" (1.5 mm) 0.197" (5 mm) 0.394" (10 mm)
MAX. SWITCHING FREQ. 5 KHz 500 Hz 2 KHz 1 KHz 500 Hz
POWER SUPPLY 5-30 VDC 5-30 VDC 10-30 VDC 10-30 VDC 10-30 VDC
OUTPUT <1 mA> 2.2 mA <1 mA> 2.2 mA NPN Open Collector Transistor
L.E.D. TARGET INDICATOR No Yes Yes Yes Yes
MODELS MB4B & 5B MOUNTING BRACKETS
DIMENSIONS
The Models MB4B and 5B are stainless steel right angle
mounting brackets, designed to provide easy mounting and
adjustment of PSA-7B and 8B respectively, using the 2 hex jam
nuts provided with each sensor.
DIMENSIONS In inches (mm)
MODEL NO. DESCRIPTION PART NUMBER
PSA1B 2-Wire Cylindrical Proximity Sensor PSA1B000
PSA2B 2-Wire, 30 mm Threaded Proximity Sensor PSA2B000
PSA6B 8mm Threaded Proximity Sensor PSA6B000
PSA7B 18mm Threaded Proximity Sensor PSA7B000
PSA8B 30mm Threaded Proximity Sensor PSA8B000
MB4B Mounting Bracket for PSA7B MB4B0000
MB5B Mounting Bracket for PSA8B MB5B0000
ORDERING INFORMATION
SENSOR
MODEL
DIMENSIONS
A B C D E F G H J SLOT
MB4B PSA7B 1.63
(41.5)
1.00
(25.4)
2.5
(63.5)
1.25
(31.8)
0.62
(15.7)
0.31
(7.9)
1.88
(47.8)
0.75
(19.1)
0.06
(1.5)
MB5B PSA8B 2.62
(66.5)
1.75
(44.5)
4.25
(108.0)
1.75
(44.5)
0.88
(22.4)
0.37
(9.5)
3.50
(88.9)
1.19
(30.2)
0.07
(1.8)
0.22 X 0.75
(5.6 X 19.1)
BRACKET
MODEL NO.
0.28 X 1.25
(7.1 X 31.8)

I
818 www.redlion.net
DESCRIPTION
The PSAC offers a NPN Open Collector output that is compatible with most
Red Lion Controls’ Motion Monitors, Counters, and Controls. This sensor has
a maximum sensing distance of 0.059" (1.5 mm) and can detect ferrous and
non-ferrous metal targets from zero speed to 5 KHz.
The 0.25" diameter pole piece is epoxy encapsulated in a stainless steel case
measuring 0.75" Dia. x 3.5" L and is supplied with a 10, 25 or 50 ft., 3-wire,
cable. Overall dimensions, including the neoprene strain-relief boot are 0.90"
Dia. x 4.5" L. Operating temperature range is -25° to +70°C.
SPECIFICATIONS
1. SUPPLY VOLTAGE: +10 - 30 VDC @ 20 mA max.; Unit is not Reverse
Polarity Protected.
2. MAXIMUM SWITCHING FREQUENCY: 5 KHz
3. OUTPUT: NPN Open Collector Transistor;
VOH = 30 VDC max.; VOL = 1 V max @ 150 mA.
4. MAXIMUM SENSING DISTANCE: 0.059" (1.5 mm)
5. OUTPUT CABLE: Integrally potted 10, 25, or 50 ft. PUR jacketed 3-wire
24 AWG conductors.
BROWN = +VDC, BLUE = Common, BLACK = NPN O.C. Output
6. OPERATING TEMPERATURE RANGE: -25°C to +70°C (13°F to
+158°F)
7. CONSTRUCTION: Epoxy Encapsulated 0.25" dia. sensor in 0.750"
±0.005" dia. #304 stainless steel case.
Figure 1
3/4" DIAMETER CYLINDRICAL SENSOR MOUNTING
The PSAC and other Red Lion
Controls 3/4" dia. cylindrical
pickups may be easily mounted
using Model 5400100 BLOCK
MOUNT (see diagram at right).
This machined block of solid
aluminum provides for rigid
mounting using the 2 included #8-
32 x 1/2" screws. The one screw
split-clamp design allows for easy
adjustment of airgap and locks the
unit securely without deforming
the case. Alternative plug mounts
available. See Model LMP for
details.
OSENSE FERROUS AND NON-FERROUS METAL OBJECTS
OOPERATES FROM ZERO TO 5 KHZ PULSE OUTPUT RATE
OSENSES TARGETS AS SMALL AS 12 D.P. GEAR TEETH
OIDEAL FOR TACHOMETER, COUNTER AND CONTROL INPUT
PSAC APPLICATION
PSAC application depends on the size, material, and spacing of the targets
being sensed and the sensing distance that can be maintained. The maximum
sensing distance is defined as that distance where the sensor is just close enough
to detect a ferrous target whose diameter is equal to or greater than the sensor
diameter. For the PSAC, the internally potted sensor diameter is 0.25". In an
actual application the sensing distance should be between 50-70% of the
maximum to assure reliable detection. For target sizes smaller than the 0.25"
sensor diameter, the maximum sensing distance can be estimated from the
curve in Fig. 2. A further reduction factor must also be applied if the target
material is a non-ferrous metal as shown in Fig. 3.
Ideally, spacing between adjacent targets should be at least 0.25" so that the
first target completely leaves the sensors’ viewing field before the next target
appears. Individual targets can still be resolved as separate objects if this
spacing is reduced to 70 or 75% of the sensor diameter, however this can
introduce a minimum limit on sensing distance that makes adjustment a bit
more critical
The PSAC is internally shielded which allows the sensor face to be flush
mounted in metal applications without reducing sensing distance.
MODEL PSAC - 3-WIRE INDUCTIVE PROXIMITY SENSOR WITH CURRENT SINK OUTPUT
DIMENSIONS In inches (mm)
PSAC
BLOCK MOUNT
For 3/4" cylindrical sensors
Qty. 2 #8-32 x 1/2" Mounting screws included
P/N 5400100
Reduction in the max. sensing distance
due to decrease in diameter of ferrous
targets.
Figure 2
Typical reduction factors for various
nonferrous targets with diameters equal to
or greater than sensor diameter.
Figure 3
MAXIMUM SENSING DISTANCE REDUCTION FACTORS
ORDERING INFORMATION
MODEL NO. DESCRIPTION PART NUMBER
PSAC
PSAC0050
PSAC0025
PSAC0000
Block Mount 5400100
NPN O.C. Proximity Sensor, 50 ft. Cable
NPN O.C. Proximity Sensor, 25 ft. Cable
NPN O.C. Proximity Sensor, 10 ft. Cable

I
8191-717-767-6511
OIDEAL FOR LIMITED SPACE APPLICATIONS
OSENSE FERROUS & NON-FERROUS METAL OBJECTS TO
“ZERO SPEED”
O3-WIRE NPN TRUE OPEN COLLECTOR OUTPUTS
O2 SIZES & SENSING DISTANCES FOR APPLICATION
VERSATILITY
OL.E.D. TARGET INDICATOR
“FLAT PACK” RECTANGULAR INDUCTIVE PROXIMITY SENSORS
These Inductive Proximity Sensors have a maximum sensing distance of
0.078" (2 mm) and 0.393" (10 mm) respectively, and operate over a wide power
supply range (See Specifications Below). They are each housed in plastic with
a top active face. The NPN transistor outputs are true open collector and are
compatible with most Red Lion counter and rate meter input circuits. Maximum
sensing frequencies are 2 KHz and 500 Hz respectively. In addition, the outputs
are overload and short circuit protected. These sensors are shielded for flush
mounting in metal applications.
DESCRIPTION & OPERATION
Inductive Proximity Sensors detect the presence of metal objects that come
within range of their oscillating field and provide target detection to “zero
speed”. Internally, an oscillator creates a high frequency electromagnetic field
(RF) that is radiated from the coil and out from the sensor face (See Figure 1).
When a metal object enters this field, eddy currents are induced into the object.
As the metal moves closer to
the sensor, these eddy currents
increase and result in an
absorption of energy from the coil
that dampens the oscillator
amplitude until it finally stops.
MODELS PSAFP1 & PSAFP2
In addition to the coil and oscillator circuit, the 3-wire Models PSAFP1 and
PSAFP2 each contain a Detector Circuit and NPN Transistor Output (See
Figure 2). In these units, the Detector Circuit senses when the oscillator stops,
and turns on the Output Transistor that controls the load. The Detector Circuit
also turns on an integrally case mounted L.E.D., visually indicating when a
metal object is sensed.
Figure 1
Figure 2
PSAFP100 PSAFP200
1. Power Supply: +10 to +30 VDC
@ 15 mA max.
VSAT = 1.8 V @
150 mA max. load
REVERSE POLARITY PROTECTION
2. Maximum Switching Frequency: 2 KHz 500 Hz
3. Output: NPN Open Collector Output,
Overload and Short Circuit protected.
VSAT = 1.8 V @
200 mA max. load
4. Maximum Sensing Distance: 0.078" (2 mm) 0.393" (10 mm)
5. Wire Color Code: Brown = +VDC; Blue = Common;
Black = Output
6. Operating Temperature: -25° to +70°C
(-14° to +158°F)
7. Construction:
220 mA170 mA
NEMA 1, 3, 4, 6, 13 and IEC IP 67
PSAFP1 AND PSAFP2 SPECIFICATIONS
TYPICAL HOOKUP
LED STATES
LED ON (GREEN) POWER ON
LED ON (YELLOW) OUTPUT ENERGIZED
LED ON (FLASHING GREEN) SHORT CIRCUIT WARNING
-25° to +85°C
(-14° to +185°F)
8. Trigger Current for Overload Protection:

I
820 www.redlion.net
SELECTION & APPLICATION OF PROXIMITY
SENSORS
Selection of the proper proximity sensor depends on the size, material, and
spacing of the target being sensed and the sensing distance that can be
maintained. The maximum sensing distance is defined as the distance when the
sensor is just close enough to detect a ferrous target whose diameter is equal to
or greater than the sensor diameter. In actual application, the sensing distance
should be between 50 to 80% of the maximum sensing range to assure reliable
detection. For target sizes smaller than the sensor diameter, the maximum
sensing distance can be estimated from the curve (See Figure 3). A further
reduction factor must also be applied if the target material is non-ferrous metal
(See Figure 4). Ideally, spacing between adjacent targets should be at least one
sensor diameter so that the first target completely leaves the sensors field before
the next target appears. Individual targets can still be resolved as separate
objects if this spacing is reduced to 70 or 75% of the sensor diameter, however,
this can introduce a minimum limit on sensing distance that makes adjustment
more critical. All proximity sensors are internally shielded which allows the
sensor face to be flush mounted in metal applications without reducing sensing
distance. In applications where proximity sensors must be placed next to each
other, a distance of at least 1 sensor diameter should separate sensors to
eliminate any frequency interference (See Mounting below).
PSAFP100 and PSAFP200 outputs are NPN open collector outputs. A
PSAFP100 and PSAFP200 may be used as an input to more than 1
indicator or control only if the respective power supplies of each unit
are “unregulated” and can load share. It is recommended to use only
one power supply for sensor power. An indicator or control with a
regulated power supply may not be paralleled.
MAXIMUM SENSING DISTANCE REDUCTION FACTORS
Reduction in the maximum sensing
distance due to decrease in diameter
of ferrous targets.
Typical reduction factors for various non-
ferrous targets with diameters equal to or
greater than sensor diameter.
Counter #1 and #2 both contain
unregulated +12 VDC Power
Supplies.
Figure 3 Figure 4
DIMENSIONS In inches (mm)
PSAFP100
Notes:
1. PSAFP100 Housing: Plastic, PA12-GF30
Cable: 2 meter standard length
2. PSAFP200 Housing: Plastic, PBT-GF30-VO
Cable: 2 meter standard length
PSAFP200 MOUNTING
PSAFP200
A B C D E
30.00 mm 45.00 mm 30.00 mm 30.00 mm 60.00 mm

I
8211-717-767-6511
ORDERING INFORMATION
MODELS MB7 & MB8 MOUNTING ACCESSORIES FOR PSAFP200
OMOUNTING BRACKET
OSTAINLESS STEEL: VA 1.4301
OMOUNTING SPACER
OFOR MOUNTING WITH ACTIVE FACE DOWNWARDS
OMETAL, Cu2n
The Model MB7 and MB8 mounting accessories are designed to provide easy mounting and adjustment of the PSAFP200.
MB700000
MB800000
Mounting Bracket for PSAFP200 MB800000MB8
MB700000Spacer for PSAFP200 MB7
PSAFP20010 mm Flat Pack Rectangular Proximity SensorPSAFP2
PSAFP1002 mm Flat Pack Rectangular Proximity SensorPSAFP1
PART NUMBERDESCRIPTIONMODEL NO.

I
822 www.redlion.net
DESCRIPTIONS
This sensor is ideal for generating switch-contact count signals from passing
steel or iron castings, weldments, stampings, “Tin-cans”, pulley spokes, etc. A
flux-field, generated by internal permanent magnets is arranged to hold the
SPDT switch contact in the N.C. position. When an external mass of magnetic
material (target) approaches the sensing area, it shunts away a part of this field,
causing the switch contact to transfer to the N.O. position. The distance, at
which this occurs, is called the “Sensing Distance” and it depends on the size,
shape and thickness of the ferrous target. The curve below shows variation of
sensing distance with target area of steel plate, 0.1" or more in thickness. For
very thin sheet steel (0.01" to 0.02") derate sensing distance by 50%. Once the
N.O. switch transfer is made, the target must move away approximately 2 times
the sensing distance to re-establish the original N.C. contact closure.
These switches can be operated at speeds up to 60 counts/sec and have a life
rating of 2-billion operations when used in low-current, low-voltage electronic
counting applications. Operating temperature range is -50° to +120°C.
MAGNETIC PROXIMITY SWITCH - RESPONDS TO FERROUS METALS &
REQUIRES NO EXTERNAL POWER & RUGGED, FOR HOSTILE ENVIRONMENTS
DIMENSIONS In inches (mm)
SPECIFICATIONS
1. *SWITCH CONTACT RATING: 1250 watts max.; 120, 240, 480, 600
VAC; 10 cps resistive load.
2. RESPONSE TIME: 8 msec.
3. REPEATABILITY: 0.002" Typical
4. LIFE: Tested to mechanical and electrical life of over 2 billion cycles.
(Actual life varies with electrical load.)
5. OPERATING TEMPERATURE RANGE: -50°C to +120°C (-60°F to
+250°F)
* - Derate at higher cycle rates, inductive loads and for DC uses.
MODEL NO. DESCRIPTION PART NUMBER
MPS 4100600
Note: The MPS is also available in an explosion-proof version with certain
agency approvals on a special order basis. Contact your distributor for
prices and delivery.
Magnetic Proximity Switch
ORDERING INFORMATION

I
8231-717-767-6511
SPEED SWITCHES
DIGITAL TACHOMETERS
FREQUENCY TO D.C. CONVERTERS
FEATURES INCLUDE
zSELF-GENERATING, NO EXT. POWER NEEDED
zWIDE OPERATING TEMPERATURE RANGE
zEPOXY ENCAPSULATED, MECHANICALLY RUGGED
zIMPERVIOUS TO DIRT, OIL & WATER
zNO MAINTENANCE REQUIRED
zLOW COST
zM12 CONNECTOR (MODEL SPECIFIC)
DESCRIPTION OF OPERATION
A Magnetic Pickup consists of a permanent magnet, a pole-piece, and a
sensing coil all encapsulated in a cylindrical case. An object (target) of iron,
steel, or other magnetic material, passing closely by its pole-piece causes
distortion of the magnetic flux field passing through the sensing coil and pole-
piece, which in turn generates a signal voltage. The magnitude of the signal
voltage depends on the relative size of the magnetic target, its speed of
approach, and how close it approaches. The polarity of the signal depends on
whether the target is moving toward or away from the pole-piece.
Magnetic Pickups are most frequently used to sense passing teeth on a gear,
sprocket, or timing belt wheel, to bolt-heads, key-ways, or other moving
machine mounted targets. Typical targets and resulting signal wave forms are
shown below in Fig. 1.
SELECTING A MAGNETIC PICKUP
Selecting a magnetic pickup is a matter of matching a pickup to a gear (or
other target), to provide enough input signal to a tachometer, speed-switch, or
other device for operation at the required minimum speed. The open-circuit
output from a magnetic pickup is directly proportional to speed, and once the
minimum operating speed conditions have been met, excess signal will always
be available at higher speeds.
The “1-Volt Threshold Speed” column in the Application and Ordering Table
(next pg.) provides a convenient guide for estimating minimum operating
speeds. This value is the linear surface-speed of a reference gear required to
generate a 1-Volt peak, open-circuit output at an air-gap of 0.005". The
reference gear listed for each pickup is near the optimum size for that pickup,
as defined by the criteria in Fig. 1B. The RPM listed is for a reference gear with
60 teeth running at that surface-speed. Gears with larger teeth provide about the
same or somewhat more output at the same surface-speed, while gears with
smaller teeth or fewer number of teeth yield lower outputs. Figures 1C - 1F need
a very high surface speed to generate a 1-Volt peak. The “Minimum Gear Size”
column lists the Diametral Pitch size at which the output drops to 40-60% of the
output when the reference gear is used. Gears with very small teeth in relation
to the pole-piece diameter, deliver greatly reduced outputs, as shown in Fig. 1A.
Threshold outputs when using targets other than gear teeth can be estimated by
their relative size with respect to the reference gear teeth. For more information
on gears, definitions and relationships, see the Sensing Gears Bulletin.
The 1-Volt Threshold Speeds are based on a 0.005" air-gap. In applications
where this air-gap cannot be maintained or where the air-gap can vary due to
eccentricity of the sensing gear, a correction factor can be applied from the
curve in Fig 2. The effect of electrical loading is usually minimal at low speeds
and low output frequencies, however, output voltage drop due to loading at high
frequency or with low impedance inputs can be estimated based on the Output
Impedance data.
Note: Magnetic Pickups are used primarily for tachometer and other speed
related functions. They are not normally used for counting since loss of
counts will occur at low speeds. Therefore, counters are not designed to
accept outputs directly from conventional magnetic pickups. In special
applications where counting occurs only at running speed or where low-
speed count loss is acceptable, a Model ASTC can be used, or a different type
of sensor can be used as a substitute.
TYPICAL APPLICATION EXAMPLE
A Digital Tachometer, with an input sensitivity of 0.25 V is to be used with a
Magnetic Pickup and gear to indicate speed down to 75 RPM. What are the
alternative choices?
Since the input voltage required by the tachometer is only 0.25 V, the surface
speeds and reference gear RPM’s required would only be 2 of the 1-Volt
Threshold Speeds listed. The MP-25TA with a 60-tooth, 24 D.P. reference gear
would obviously fall short since this combination will not develop 0.25 V until
the reference gear speed reaches 250 RPM.
The MP-37CA with the 60-tooth, 20 D.P. reference gear would both prove
suitable since they would deliver the required 0.25 V at 50 and 45 RPM
respectively. They would also provide some additional margin for air-gap
variation. The curve of Fig. 2 shows a typical output drop of about 25% when
the air-gap is increased from 0.005" to 0.0075". Since the minimum operating
speed in this application is 75 RPM, the additional sensitivity can be traded for
a wider air-gap allowance.
The MP-62TA and MP-75TX with their respective reference gears would
allow operation at even lower speeds. With both of these pickups it would be
possible to drop to a smaller gear pitch for this application.
MAGNETIC PICKUPS & IN-LINE PREAMPLIFIER
SIMPLE, RELIABLE & ECONOMICAL PULSE GENERATORS FOR:
FIG. 1 OUTPUT WAVEFORMS WITH VARIOUS TARGET SHAPES & SIZES FIG. 2 TYPICAL OUTPUT/AIR-GAP

I
824 www.redlion.net
NOTES:
1) Surface speed of listed reference gear to produce 0.8 volt peak min., open-
circuit output @ 0.005" air-gap.
2) Gear pitch where output will drop to 40-60% of that generated by the
reference gear size, at the same surface speed.
3) UL Listed CSA Certified, Class I Group A, B, C and D; Class II Group E, F
and G. (VDO Control Systems, Inc.) PN#AIRPAX/70085-1010-005, UL File
#E40545 (N), CSA File #042648.
4) Polarity, all pickups: white output lead goes positive with respect to black
when target approaches pole.
5) 2-Wire shielded cable is recommended for all magnetic pickup outputs.
Connect the shield to the “COMMOM” or “GROUND” terminal of the
instrument being used and leave the shield un-connected at the pickup.
Magnetic Pickup signal leads should never be run in conduit, troughs, or
bundles with other power or control voltage lines.
6) Lead length of magnetic pickup should not be extended. An in-line pre-
amplifier (ASTC) can be placed on the end of the provided length which
would allow longer length after the in-line pre-amplifier.
7) M12 unit color codes for 1 meter cable is:
PIN 3 - Blue (-)
PIN 4 - Black (+)
PIN 2 - NC
PIN 1 - NC
MAGNETIC PICKUP APPLICATION & ORDERING INFORMATION
1-VOLT MINIMUM TEMP. OUTPUT
MODEL NO. DIMENSIONS THRESHOLD GEAR RANGE IMPENDANCE PART NO.
SPEED (1) PITCH (2) oC
MP-25TA 135 in/sec 48 D.P. -40 to +107 130 Ω ±20% MP25TA00
1000 RPM 15 mH
60T 24 D.P.
Ref. Gear
MP-37TA 33 in/sec 32 D.P. -40 to +107 340 Ω ±20% MP37TA00
200 RPM 44 mH
60T 20 D.P.
Ref. Gear
MP-37TAC1 33 in/sec 32 D.P. -40 to +107 340 Ω ±20% MP37TAC1
200 RPM 44 mH
60T 20 D.P. *
Ref. Gear
MP-37CA 30 in/sec 32 D.P. -40 to +107 300 Ω ±30% MP37CA00
180 RPM 65 mH
60T 20 D.P.
Ref. Gear
MP-62TA 10 in/sec 24 D.P. -40 to +107 1200 Ω ±20% MP62TA00
50 RPM 400 mH
60T 16 D.P.
Ref. Gear
MP-62TAC1 10 in/sec 24 D.P. -40 to +107 1200 Ω ±20% MP62TAC1
50 RPM 400 mH
60T 16 D.P. *
Ref. Gear
MP-62TB 20 in/sec 24 D.P. -40 to +107 1200 Ω ±20% MP62TB00
100 RPM 400 mH
60T 16 D.P.
Ref. Gear
MP-75TX 30 in/sec 12 D.P. -73 to +93 230 Ω ±20% MP75TX00
Explosion 100 RPM 100 mH
Proof (3) 60T 10 D.P.
Ref. Gear
MODEL NO. DESCRIPTION PART NUMBERS
CCM CCM12S01Mating Cable With M12 Connector, 1 Meter In Length
ORDERING INFORMATION
The following cables are for use with magnetic pickups MP37TAC1 and MP62TAC1, which have
M12 connectors.

I
8251-717-767-6511
ODETECTS STEEL SENSING GEARS OR OTHER MOVING
FERROUS TARGETS
OBUILT-IN PULSE SHAPING AMPLIFIER PROVIDES ULTRA-LOW-
SPEED OPERATION WITH LARGE AIR GAPS
OTWO OUTPUT SIGNAL VERSIONS
O3/4" DIAMETER STAINLESS STEEL CASE
OEPOXY ENCAPSULATED SENSOR FOR OIL, DIRT & MOISTURE
RESISTANCE
DESCRIPTION
LOGIC MAGNETIC PICKUPS (LMP’s) provide sensing sensitivities
several orders of magnitude greater than standard magnetic pickups when
detecting moving ferrous targets. By locating a high gain pre-amplifier & signal
processing circuit “inside” the mag pickup housing, larger airgaps and slower
target surface speeds can be achieved thereby greatly expanding application
versatility as compared with conventional mag pickups. In addition, these units
have excellent noise immunity and a frequency response to 10 KHz. The stainless
steel sensing pole is mounted flush to the plastic sensing face allowing greater
ease of setting airgaps and eliminating snagging the pole with a moving target.
Two output types are available (see ordering information). The NPN Open
Collector Transistor Output unit provides a negative going current sinking
output with the approach of a ferrous target and is current limited to 40 mA.
The Transistor Emitter-Follower Output unit provides positive going 5 V
pulses with the approach of a ferrous target and can source 20 mA of load
current. The Open Collector units are available with either an integrally potted
10, 25 or 50 foot 3-wire shielded cable with neoprene strain relief boot or a
polarized 3-pin 5/8"-24 threaded connector for quick change versatility (see
following page for mating extension cable). The Emitter-Follower output unit is
available in the 3-pin connector version only.
SPECIFICATIONS
1. SUPPLY VOLTAGE (all versions): +9 to +30 VDC @ 25 mA max.
2. NPN OPEN COLLECTOR OUTPUT (LMPC & LMPCC): VOH = 30
VDC max.; VOL = 1 Vmax. @ 30 mA, output current is limited to 40 mA.
3. EMITTER-FOLLOWER OUTPUT (LMPEC): +5 V signal level @ 20
mA max. current sourcing.
4. OPERATING FREQUENCY (all versions): 10 KHz max.
5. OPERATING TEMPERATURE: -18°C to +60°C (0°F to +140°F)
6. CONSTRUCTION: Epoxy encapsulated in 0.750" ±0.005" dia. #304
stainless steel case. Plastic sensing face with stainless steel sensing pole.
7. OUTPUT CABLE (LMPC only): Integrally potted 10, 25 or 50 ft. PVC
jacketed, 3-wire 22 AWG conductors, with stranded shield and 100% foil
shield coverage.
RED = +VDC, BLK = COMMON, WHT = NPN O.C. OUTPUT
8. OUTPUT CONNECTOR (LMPCC & LMPEC): Polarized 5/8"-24 thread
3-pin connector.
A= +VDC, B= COMMON, C= SIGNAL OUTPUT
LOGIC MAGNETIC PICKUPS - SUPER-SENSITIVE MAGNETIC PICKUPS WITH CURRENT
SINKING OUTPUT OR CURRENT SOURCING OUTPUT
DIMENSIONS In inches (mm)
LMPC LMPCC & LMPEC
CONNECTOR BACK VIEW
DIMENSIONS
MODEL A B
LMPCC 3.5" (88.9) 4.125" (104.8)
LMPEC 3.0" (76.2) 3.625" (92.1)

I
826 www.redlion.net
3-PIN CONNECTOR EXTENSION CABLE
(LMPCC & LMPEC)
This cable and connector assembly (see diagram below) is composed of PVC
jacketed, 3-wire 22 AWG conductors with stranded shield and 100% foil shield
coverage for noise immunity and is oil and water resistant. Connector/cable
junctions are silicone sealed. The 5/8"-24 threaded ring is fitted with an O-ring to
make a moisture proof connection. Cable is available in 10, 25, or 50 foot lengths.
Dimensions in inches (mm)
3-PIN CONNECTOR EXTENSION CABLE
PVC jacketed, 3-wire, 22 AWG conductors with stranded shield and
100% foil shield coverage. There is no connection of stranded shield wire
to 3-pin connector. Shield may be connected to instrument common for
increased noise immunity.
3/4" DIAMETER CYLINDRICAL SENSOR MOUNTING
Logic Magnetic Pickups and other Red Lion Controls 3/4" dia. cylindrical
pickups may be easily mounted using Model 5400100 BLOCK MOUNT (see
diagram below). This machined block of solid aluminum provides for rigid
mounting using the two included #8-32 x 1/2" screws. The one screw split-
clamp design allows for easy adjustment of airgap and locks the unit securely
without deforming the case.
The PLUG MOUNT (see diagram below) allows 3/4" dia. cylindrical
sensors to be mounted in “thru-wall” applications. The Plug Mounts 3/4-14
NPT thread is installed into a threaded wall or casing. The sensor is then
installed through the plug mount. The sensor-to-target airgap is adjusted and the
sensor is tightened into position by two #8-32 set screws. Tightening the ferrule
nut compresses a teflon ferrule around the sensor providing an oil tight seal.
Plug Mounts are available in both steel and stainless steel (see ordering
information).
BLOCK MOUNT PLUG MOUNT
For 3/4" cylindrical sensors For 3/4" cylindrical sensors
Qty. 2 #8-32 x 1/2"Mounting screws
included P/N 5403701 - steel
P/N 5400100 P/N 5403702 - stainless steel
LMPC0025
LMPC0050
LMPEC000
LMPCC000
CCA3PC50
CCA3PC25
CCA3PC00
5403702
5403701
5400100
LMPC0000
PART NUMBERDESCRIPTION
3-Pin Connector Extension Cable, 50 ft.
3-Pin Connector Extension Cable, 25 ft.
3-Pin Connector Extension Cable, 10 ft.
Stainless Steel Plug Mount
Steel Plug Mount
Block Mount for 3/4" Cylindrical Sensors
LMPC
*LMPEC
LMPCC
CCA3
MODEL NO.
Logic Magnetic Pickup, NPN O.C., 10 ft. Cable
Logic Magnetic Pickup, NPN O.C., 25 ft. Cable
Logic Magnetic Pickup, NPN O.C., 50 ft. Cable
Logic Magnetic Pickup, Emitter Follower, 3-Pin Connector
Logic Magnetic Pickup, NPN O.C., 3-Pin Connector
*This Model is a direct replacement for P/N 5171000.
ORDERING INFORMATION

I
8271-717-767-6511
MODEL ARCJ - NEMA “C” FACE-MOUNTED MOTOR ADAPTER KITS
FOR CONVENIENT ADAPTATION OF SENSORS & SENSING GEARS
TO GEAR CASE OR FOOT-MOUNTED NEMA “C” FACE MOTORS
DESCRIPTION
ARCJ Ring Adapters can be quickly and easily installed on foot-mounted
motors with NEMA type “C” face mount end bells, or between motor and
gear case flange.
The ARCJ ring, with integral junction box, is cast aluminum with precision
machined mounting surfaces. Kits are supplied complete with a 60-tooth
sensing gear, factory installed magnetic pickup or HESS sensor, and mounting
hardware. The maximum recommended gear speed for all kits is 5,000 RPM.
Two ARCJ ring sizes and five gear bores cover the range of motor frame sizes
as listed in the Ordering Information.
Wiring connections to the sensor are made by removing the gasketed
junction box cover. Two threaded female (½" NPT) conduit connections are
provided for right or left conduit entry (as shown in the Dimension drawing).
A threaded plug is supplied with each kit for sealing the un-used conduit entry.
The 60-tooth steel sensing gear (kit supplied) results in direct RPM
indication when used with a 1 second time-base rate indicator (tachometer).
Red Lion Controls rate indicators can be configured to provide a complete
speed sensing and indication system. The following two sensor options (next
page) are available with the ARCJ kits in order to meet a wide variety of
applications.
DIMENSIONS FOR MODEL ARCJ-1 In Inches (mm)
DIMENSIONS FOR MODEL ARCJ-2 In Inches (mm)
See ARCJ-1 for
junction box details.

I
828 www.redlion.net
MAGNETIC PICKUP SENSOR
The ARCJ kits with this sensor option use the Red Lion Controls MP-37CA
Magnetic Pickup.This sensor does not require external power.
The Magnetic Pickup is factory installed in the ring to provide a nominal
sensor/gear air gap of 0.007" (0.18 mm) to 0.010" (0.25 mm). This provides
adequate output from the sensor for most applications. However, if output must
be maximized, the air gap can be easily user-adjusted to 0.005" (0.13 mm)
minimum, once the particular gear being used is mounted on the motor shaft.
(Refer to Magnetic Pickup literature for more details, enclosed in ARCJ kits.)
HALL EFFECT SPEED SENSOR (HESS)
The ARCJ kits with the HESS sensor requires an external +8 to +30 VDC
power source. This sensor does NOT have a minimum threshold speed as does
a magnetic pickup sensor. However, when the sensor is first powered up, the
output state is indeterminate when the sensor is not detecting metal. The sensor
face can be mounted flush into metal panels. The case is stainless steel and is
supplied with 10 feet (3 M) of cable. The stranded shield wire is not connected
to the sensor circuit or the case.
The sensor to gear air gap is factory set to a nominal gap of 0.015" (0.38
mm). The air gap can be adjusted by the user from 0.005" (0.13 mm) to 0.040"
(1.02 mm), which allows 0.005" (0.13 mm) maximum total gear runout.
SPECIFICATIONS (HESS Sensor)
1. POWER SUPPLY: +8 to +30 VDC @ 30 mA max; Reverse Polarity
Protected.
2. MAXIMUM SENSING DISTANCE: 0.040" (1 mm).
3. OUTPUT: NPN O.C. transistor; VSAT = 1 V max @ 30 mA max. load.
4. OPERATING TEMPERATURE RANGE: -25°C to 70°C
(-14°F to 158°F)
5. CABLE LENGTH: 10 feet (3.05 M)
6. OPERATING FREQUENCY: 0 to 10 KHz
7. WIRE COLOR CODE: 3-wire, 22 AWG with stranded drain wire and
100% foil coverage; grey PVC jacket.
8. CABLE STRAIN RELIEF: 10 lbs (4.5 Kg) for 1 minute.
Note: Do NOT adjust sensor air gap while target (gear) is moving.
ORDERING INFORMATION
HESS DIMENSIONS In Inches (mm)
MOTOR FRAME SIZE MAG. PICKUP HESS
56C 5/8" ARCJ-1 0960625 XARCJ1A00
X ARCJ1AZ0
7/8" ARCJ-1 0960875 XARCJ1B00
X ARCJ1BZ0
182TC, 184TC, 213C, 215C, 254C 1 1/8" ARCJ-2 0941125 XARCJ2A00
X ARCJ2AZ0
213TC, 215TC, 254UC, 256UC 1 3/8" ARCJ-2 0941375 XARCJ2B00
X ARCJ2BZ0
254TC, 256TC 1 5/8" ARCJ-2 0941625 XARCJ2C00
XARCJ2CZ0
COMPLETE KIT
PART NO.
SENSOR
RING
MODEL NO.
SHAFT DIA.
(Gear Bore)
GEAR P/N
(Ref.)
143TC, 145TC, 182C, 184C
MODEL NO. DESCRIPTION PART NUMBER
HESS Replacement Sensor for HESS Option HESS0000
MP-37CA Replacement Sensor for Magnetic Pickup Option MP37CA00

I
8291-717-767-6511
DESCRIPTION
The Model ZR C-face encoder for motor feedback is a rugged, high
resolution, high temperature (100°C) encoder designed to mount directly on
NEMA C-face motors. The ZR contains a precision bearing and internal
coupling that virtually eliminates inaccuracies induced by motor shaft runout.
This encoder is ideal for applications using high performance AC vector motors.
The thru-shaft design allows fast and simple mounting of the encoder directly
to the accessory shaft or to the drive shaft of the motor, using the standard motor
face (NEMA sizes 56C, 143TC, 145TC, 182C, 184C). The tough anodized
aluminum housing with thru-shaft design resists the vibration and hazards of an
industrial environment.
SPECIFICATIONS
ELECTRICAL SPECIFICATIONS
1. SUPPLY: 5 to 28 VDC, 40 mA current draw typical, 100 mA maximum.
2. OUTPUT: Quadrature Line driver, 20 mA max per channel (meets RS-422
at 5 VDC supply). Incremental - two square waves in quadrature with A
leading B for clockwise shaft rotation. Positive pulse index.
Note: Line driver outputs are intended for motion controllers that have line
driver receivers.
3. CYCLES PER REVOLUTION: 1024 or 2048
4. MOUNTING: NEMA 56C, 143TC, 145TC, 182C and 184C
5. MAX MECHANICAL SPEED: 6000 RPM
6. MAX. FREQUENCY: 200 KHz
7. NOISE IMMUNITY: Tested to BS EN61000-4-2; IEC801-3; BS
EN61000-4-4; DDENV 50141; DDENV 50204; BS EN55022; BS
EN61000-6-2; BS EN50081-2
8. SYMMETRY: 180° (±18°) electrical
9. MIN EDGE SEP: 67.5° electrical
10. RISE TIME: Less than 1 microsecond
MECHANICAL SPECIFICATIONS
1. BORE DIAMETER: 0.625" or 1.0"
2. BORE TOLERANCE: +0.0015"/-0.000"
3. MOMENT OF INERTIA: 3.3 ×10-3 oz-in-sec2typical
4. USER SHAFT TOLERANCES:
Radial Runout:0.005"
Axial Endplay: ±0.015"
5. CABLE CONNECTION: 10 pin MS connector or 36" pigtail with 24 AWG
conductor
6. HOUSING: All metal construction
7. MOUNTING: NEMA 56C to 184C
8. WEIGHT: 2.60 lb. (1.18 Kg) with gland nut
3.00 lb. (1.36 Kg) with all other connector options
Note: All weights typical.
ENVIRONMENTAL CONDITIONS
1. OPERATING TEMPERATURE: 0 to +70°C
2. STORAGE TEMPERATURE: -25 to +100°C
3. HUMIDITY: 98% RH non-condensing
4. VIBRATION: 10 g @ 58 to 500 Hz
5. SHOCK: 50 g @ 11 msec duration
6. SEALING: IP65
OTHRU-SHAFT DESIGN FOR EASY MOUNTING
OEXCELLENT CHOICE FOR VECTOR MOTOR DRIVE CONTROL
ODESIGNED FOR INDUSTRIAL ENVIRONMENTS
OGASKET KIT INCLUDED
OQUADRATURE LINE DRIVER OUTPUT
OPOSITIVE INDEX PULSE
MODEL ZR - C-FACE ENCODER WITH LINE DRIVER OUTPUT
FOR MOTOR FEEDBACK
DIMENSIONS In inches (mm)
FUNCTION PIN CABLE WIRE COLOR
+VDC D RED
COM FBLACK
DATA A AWHITE
DATA A(H BROWN
DATA B BBLUE
DATA B(IVIOLET
DATA Z CORANGE
DATA Z(JYELLOW
SHIELD —BARE

I
830 www.redlion.net
MOUNTING INSTRUCTIONS
Mounting Kit Items Included:
4 ea. - 3/8" 16 x 1.0" Length Socket Head Cap Screws,
Black Alloy.
4 ea. - 3/8" High Collar Spring Lock washer, Steel Zinc.
1 ea. 3/32" Hex Allen Wrench, Long arm.
Note: The ZR encoder can mount to many types of C face devices. In
these mounting instructions, we will refer to the device as a motor.
Step 1
After carefully unpacking the unit, inspect to insure the motor
shaft is the correct size and free of all burrs or aberrations. Slide the
ZR Encoder over the motor shaft. DO NOT USE EXCESSIVE
FORCE: There is a rubber O-ring in the Encoder locking collar that
will provide a small amount of resistance as it engages the shaft. If
the encoder does not slide easily See Note 1 below.
Step 2
Install the four 3/8" 16 x 1.0" socket head cap screws with lock washers
through the holes in the Encoder C face and tighten securely to the motor.
Step 3
Insure the shaft locking collar is flush with the Encoder cover plate. Prevent
the motor shaft from turning (See Note 2 for additional information) and
tighten the four 4-40 Allen head cap screws in the locking collar evenly in a
crossing pattern. See Figure 1. Make sure the screws are securely tightened and
the front of the locking collar remains flush with the encoder cover plate. If the
collar does not turn true when the motor shaft is rotated, loosen the four screws
and repeat the procedure.
In Case of Difficulty:
Note 1: Make sure the four 4-40 Allen head cap screws in the front of the
Encoder locking collar are loose and the collar is not cocked or jammed.
Clean the shaft of any burrs using fine crocus cloth. The O- ring in the
Encoder locking collar may need a small amount of additional lubrication.
Note 2: When tightening the screws in the locking collar avoid holding the
motor shaft with anything that may scar or burr the shaft.
MODEL NO. DESCRIPTION PPR PART NUMBERCONNECTION
MS 10-Pin1024 ZRJ1024Z
MS 10-Pin
NEMA C
Face Encoder
0.625" DIA.
56C
2048 ZRJ2048Z
MS 10-Pin1024 ZRL1024Z
MS 10-Pin
NEMA C
Face Encoder
1.0" DIA.
143TC, 145TC,
182C, 184C
2048 ZRL2048Z
ZRL
ZRJ
36" Pigtail1024 ZRJ1024R
36" Pigtail
36" Pigtail
2048 ZRJ2048R
1024
0.625
0.625
BORE SIZE
0.625
0.625
ZRL1024R
36" Pigtail2048 ZRL2048R
1.0
1.0
1.0
1.0
ORDERING INFORMATION
ACCESSORIES
DESCRIPTION PART NUMBER
CCBRPG
10-Pin Connector CCBRPG04
10-Pin Connector with 10 feet of Cable CCBRPG05
10-Pin Connector with 20 feet of Cable CCBRPG06
MODEL NO.

I
8311-717-767-6511
Sensing Gears are available in a variety of sizes to cover most applications
where a sensor is to be used, but a suitable existing machine gear is not
available. Split-type gears are convenient for use on machine drive shafts where
a shaft-end is not available to mount a standard gear. Hubless gears are ideal
for mounting in tight locations or when only a short shaft stub is available. Hub-
type, Split, and Hubless gears can be supplied with special bores (See notes
below Ordering Information & Dimensions table).
Caution: RLC’s machined steel sensing gears are NOT to be used as driving or
driven gears in a power transmission system.
NO. OF STOCK MAX. SPL. HUB RECOMMENDED RECOMMENDED
TYPE TEETH & BORE BORE O.D. DIA “D” PROJ “P” FACE “F” TORQUE FOR MAXIMUM PART
DIAMETRAL +0.003" +0.003" ±0.003" ±0.010" ±0.020" ±0.010" SET & CAP GEAR NUMBER
PITCH -0.000" -0.000" SCREWS SPEEDS
30 T. 16 D.P. 0.500" 1.375" 2.000" 1.625" 0.500" 0.500" 25 in. lbs. 5000 RPM 0950500
30 T. 10 D.P. 0.750" 1.875" 3.200" 2.125" 0.875" 1.000" 55 in. lbs. 5000 RPM 0900750
HUB TYPE 60 T. 20 D.P. 0.375" 1.750" 3.100" 2.000" 0.500" 0.375" 25 in. lbs. 5000 RPM 0970375
60 T. 10 D.P. 0.875" 2.250" 6.200" 2.500" 0.875" 1.000" 55 in. lbs. 5000 RPM 0910875
120 T. 24 D.P. 0.500" 1.250" 5.090" 1.500" 0.500" 0.250" 25 in. lbs. 5000 RPM 0980500
SPLIT GEAR 30 T. 10 D.P. 0.750" 1.875" 3.200" *1.000" 182 in. lbs. 3000 RPM 0920750
60 T. 10 D.P. 0.875" 4.250" 6.200" *1.000" 182 in. lbs. 1500 RPM 0930875
60 T. 20 D.P. 0.625" 0.870" 3.100" 0.375" 25 in. lbs. 5000 RPM 0960625
60 T. 20 D.P. 0.875" 0.875" 3.100" 0.375" 25 in. lbs. 5000 RPM 0960875
HUBLESS 60 T. 12 D.P. 1.125" 1.370" 5.160" 0.656" 40 in. lbs. 5000 RPM 0941125
60 T. 12 D.P. 1.375" 1.620" 5.160" 0.656" 40 in. lbs. 5000 RPM 0941375
60 T. 12 D.P. 1.625" 1.625" 5.160" 0.656" 40 in. lbs. 5000 RPM 0941625
*A portion of the teeth near the cap screws are milled away. However, at least ¼" of the teeth face width is available, allowing sensing of all teeth.
MACHINED STEEL SENSING GEARS FOR EXCITING SENSORS
HUB TYPE GEARS SPLIT GEARS HUBLESS GEARS
ORDERING INFORMATION & DIMENSIONS
SPECIAL BORES: Hub-Type, Split, and Hubless gears can be supplied with
special bore sizes between the Stock Bore and Max. Special Bore sizes listed
above. To order Special Bores, substitute 9999 for the last 4 digits of the part
number and specify special bore size required.
ASSEMBLY NOTE FOR SPLIT GEARS: When tightening the split gear
halves on a shaft, it is recommended that the flat washer spacers be used to
help keep the gap between halves equal.
Run-out should be checked after installation is complete. Always use the
supplied lock washers when tightening the socket head cap screws. Torque
these screws to 182 in. lbs.

I
832 www.redlion.net
PITCH DIAMETER (P.D.) - The diameter of the circle described by the tooth-
to-tooth contact point when running in mesh with the teeth of another gear.
This point is roughly half way between the root (bottom) and the tip of the
gear tooth. The Pitch Diameter is slightly smaller than the outside diameter
of the gear.
DIAMETRAL PITCH (D.P.) - The number of teeth/inch of Pitch Diameter.
Thus a 20 D.P. gear has 20 teeth for each inch of Pitch Diameter. A 60-tooth,
20 D.P. gear would have a pitch diameter of 3”, a 60T, 10 D.P. gear has a
Pitch Diameter of 6”.
PRESSURE ANGLE - Pressure angle relates to tooth shape and strength. It
has no significant effect on the operation of the gear for exciting magnetic
pickups, and pickups can be used with gears of any pressure angle.
OUTSIDE DIAMETER (O.D.) - The outside diameter is the overall diameter
of the gear to the tops of the teeth, and is used for calculating surface speed
when the gear is used to excite a magnetic sensor. The O.D. can be
determined from the following formula:
O.D. =
Example: A 60T, 16 D.P. Gear has an O.D. of:
O.D. = = 3.875 inches
SURFACE SPEED - The output of a magnetic pickup depends on the linear
surface speed of the tops of the passing gear teeth. Surface speed is normally
expressed in inches/sec. and can be calculated for a given gear as follows:
Surface Speed in inches /sec. =
or; RPM =
Example: What is the surface speed of the 60T, 20 D.P. Gear when running
at 50 RPM? At what RPM will the 1-Volt Threshold Speed (10 inches/sec.)
for the MP-62TA be realized?
Gear O.D. = = 3.1" (From O.D. formula above)
Surface Speed = = 8.115 inches /sec.
1-Volt Threshold RPM (@ 10 in/sec.) = = 61.61 RPM
OUTPUT SIGNAL FREQUENCY - The frequency generated by passing gear
teeth is related to gear RPM and the number of gear teeth (Nt) by the
following:
Output frequency (Hz or teeth/sec.) = RPM x Nt
60
10 x 60
3.1 x π
50 x 3.1 x π
60
60 +2
20
Surface Speed x 60
O.D. x π
RPM x O.D. x π
60
60 + 2
16
Nt(No. of teeth) + 2
D.P. (Diametral Pitch)
STANDARD SPUR GEAR DEFINITIONS, RELATIONSHIPS & FORMULA
Gear parameters are fundamentally related to their use as power transmission elements. Although these
parameters are not the most convenient when using gears to excite magnetic pickups, they can be easily converted
to more useful form, once the basic definitions are understood.

I
8331-717-767-6511
MODELS ZUJ AND ZUL - LARGE THRU-BORE ROTARY PULSE GENERATORS
FOR MOTOR FEEDBACK
SPECIFICATIONS
ELECTRICAL SPECIFICATIONS
1. SUPPLY VOLTAGE: 4.75 to 28 VDC, 100 mA max. (no load)
2. OUTPUTS: Line driver, VOH = 40 VDC max.; 20 mA max. current.
Incremental - two square waves with A leading B for clockwise rotation. B
leads output A for the reverse phased.
Note: Line driver outputs are intended for motion controllers that have line
driver receivers.
3. MAX. PULSE RATE: 250 KHz
4. INDEX: NPN Open Collector Transistor, VOH = 40 VDC max.; 20 mA
max. current. Once per revolution centered over output Channel A. Index
is a positive going pulse.
5. MAXIMUM MECHANICAL SPEED: 4000 RPM
6. MINIMUM EDGE SEPARATION: 45° electrical min, 63° electrical or
better typical
7. RISE TIME: Less than 1 microsecond
8. ACCURACY: Within 0.1° mechanical from one cycle to any other cycle,
or 6 arc minutes.
MECHANICAL SPECIFICATIONS
1. BORE SIZE:5/8" or 1.0" (15.875 or 25.4 mm)
2. BORE TOLERANCES: -0.0000"/+0.0008"
3. USER SHAFT TOLERANCES:
Radial Runout: 0.005" max
Axial Endplay: +/- 0.050" max
4. MAXIMUM ACCELERATION: 1X105 rad/sec2
5. STARTING TORQUE: 4.0 oz-in typical (28.24 N-mm)
6. MOMENT OF INERTIA:
7.6 x 10-4 oz-in-sec2
7. ELECTRICAL CONNECTOR: 10-pin MS type connector
8. WEIGHT: 8 oz. (226.7 g)
ENVIRONMENTAL SPECIFICATIONS
1. OPERATING TEMPERATURE: -20°C to 105°C
2. STORAGE TEMPERATURE: -20°C to 85°C
3. HUMIDITY: 98% RH non-condensing
4. VIBRATION: 20 g @ 5 to 2000 Hz
5. SHOCK: 80 g @ 11 msec duration
6. SEALING: IP66
GENERAL DESCRIPTION
The ZUJ and ZUL are high performance units that are ideal for fast revving
motor mount applications. The injection molded housing is grooved with
“cooling fins”, and can take the extreme heat of the motion control industry.
The unit comes equipped with a 3.5" to 5.90" B.C. tether arm to mount to a
4.5" motor face.
This revolutionary encoder can also be adapted to various standard and metric
sized motor shafts by using individual sleeves (Sold separately).
Electrically the unit offers line driver outputs, limited to 20 mA per channel.
The outputs are standard quadrature with index and are also available with
reverse phasing for the typical motor drive controller application. The separation
is 90° with output A leading output B for clockwise rotation. Output B leads
output A for the reverse phased output, for clockwise rotation.
DIMENSIONS In inches (mm)
BARE-SHIELD
YELLOWJ
DATA Z(
ORANGECDATA Z
VIOLETI
DATA B(
BLUEBDATA B
BROWNH
DATA A(
WHITEADATA A
BLACKFCOM
REDD+VDC
CABLE WIRE COLORPINFUNCTION

I
834 www.redlion.net
ACCESSORIES
CCBRPG0610-Pin Connector with 20 ft Cable
CCBRPG CCBRPG0510-Pin Connector with 10 ft Cable
CCBRPG0410-Pin Connector
PART NUMBERDESCRIPTION
RPGPC000
RPGBSM03
RPGBSI04
RPGBSM01
RPGBSI02
RPGBSM02
RPGBSI03
RPGBSM00
RPGBSI01
56C Protective Cover Kit
25 mm Bore Sleeve
1 Inch Bore Sleeve
20 mm Bore Sleeve
0.750 Inch Bore Sleeve
24 mm Bore Sleeve
0.875 Inch Bore Sleeve
19 mm Bore Sleeve
0.625 Inch Bore Sleeve
RPGPC
RPGBSM
RPGBSI000.500 Inch Bore Sleeve
MODEL NO.
RPGBSI
Notes: The following list of options are available, contact the factory for details
Additional wiring configurations, including M12 connectors
Additional output configurations, including reverse phase
Additional mounting and shaft/bore sizes
Additional pulses, including 10, 120, 200, 360, 512, 1024, 1500, 1800, and 2048
CE approved models available
ORDERING INFORMATION
MODEL NO.
5/8" Thru-Bore Rotary Pulse
Generators For Motor Feedback
1024 ZUJ1024Z
2048 ZUJ2048Z
DESCRIPTION
1024 ZUL1024Z
PPR PART NUMBER
2048 ZUL2048Z
ZUL
ZUJ
1" Thru-Bore Rotary Pulse
Generators For Motor Feedback

I
8351-717-767-6511
DESCRIPTION
The Model ZR C-face encoder is a rugged, high resolution, high temperature
(100°C) encoder designed to mount directly on NEMA C-face motors. The ZR
contains a precision bearing and internal coupling that virtually eliminates
inaccuracies induced by motor shaft runout. This encoder is ideal for
applications using high performance AC vector motors.
The thru-shaft design allows fast and simple mounting of the encoder directly
to the accessory shaft or to the drive shaft of the motor, using the standard motor
face (NEMA sizes 56C, 143TC, 145TC, 182C, 184C). The tough anodized
aluminum housing with thru-shaft design resists the vibration and hazards of an
industrial environment. In addition, a C-face gasket kit is included free for motor
shaft protection and enclosure.
Open Collector Output Wiring
The ZR series of sensors have open collector outputs. An open collector
output brings the uncommitted collector of the encoder switching device to the
external world. Because the collector element is not associated with the sensor
supply voltage, the sensor output collector may be “pulled up” to external
voltages different than the encoder supply voltage (40 VDC maximum). NPN
open collector outputs are current sinking devices. An output signal will not be
generated unless a pull-up resistor is connected from the open-collector to the
positive side of an external supply. The same supply can be used for powering
the unit and for the pull-up resistor.
SPECIFICATIONS
ELECTRICAL SPECIFICATIONS
1. SUPPLY: 4.75 to 28 VDC, 40 mA current draw typical, 100 mA maximum.
2. OUTPUT: NPN Open Collector transistor , VOH = 40 VDC max.; 100 mA
max. current. Incremental - two square waves in quadrature with A leading B
for clockwise rotation. Positive pulse index.
3. CYCLES PER REVOLUTION: 256 or 1024
Note: Review the max. input rate of the RLC counter being used. The high
output rate of the 1024 version will quickly reach the max. input capability
of RLC quadrature counters. At 1024 PPR, high pulse rates are reached at
low RPM.
4. MAX MECHANICAL SPEED: 6000 RPM
5. MAX. FREQUENCY: 200 KHz
6. NOISE IMMUNITY: Tested to BS EN61000-4-2; IEC801-3; BS
EN61000-4-4; DDENV 50141; DDENV 50204; BS EN55022; BS
EN61000-6-2; BS EN50081-2
7. SYMMETRY: 180° (±18°) electrical
8. MIN EDGE SEP: 67.5° electrical
9. RISE TIME: Less than 1 microsecond
MECHANICAL SPECIFICATIONS
1. BORE DIAMETER: 0.625" or 1.0"
2. BORE TOLERANCE: +0.0015"/-0.000"
3. MOMENT OF INERTIA: 3.3 ×10-3 oz-in-sec2typical
4. USER SHAFT TOLERANCES:
Radial Runout:0.005"
Axial Endplay: ±0.015"
5. CABLE CONNECTION: 36" pigtail with 24 AWG conductors
6. HOUSING: All metal construction
7. MOUNTING: NEMA 56C to 184C
8. WEIGHT: 2.60 lb. (1.18 Kg) with gland nut
3.00 lb. (1.36 Kg) with all other connector options
Note: All weights typical.
ENVIRONMENTAL CONDITIONS
1. OPERATING TEMPERATURE: 0 to +100°C for high temp. option
2. STORAGE TEMPERATURE: -25 to +100°C
3. HUMIDITY: 98% RH non-condensing
4. VIBRATION: 10 g @ 58 to 500 Hz
5. SHOCK: 50 g @ 11 msec duration
6. SEALING: IP50
OTHRU-SHAFT DESIGN FOR EASY MOUNTING
OEXCELLENT CHOICE FOR VECTOR MOTOR DRIVE CONTROL
ODESIGNED FOR INDUSTRIAL ENVIRONMENTS
OQUADRATURE OUTPUT
OPOSITIVE INDEX PULSE
OC-FACE GASKET KIT INCLUDED
MODEL ZR - C-FACE ENCODER WITH NPN OPEN COLLECTOR OUTPUT
ORANGEINDEX Z
BLACKCOMMON
RED+ VDC
WHITEDATA A
GREEN
DIMENSIONS In inches (mm)
DATA B
WIRE COLORFUNCTION

I
836 www.redlion.net
MOUNTING INSTRUCTIONS
Mounting Kit Items Included:
4 ea. - 3/8" 16 x 1.0" Length Socket Head Cap Screws,
Black Alloy.
4 ea. - 3/8" High Collar Spring Lock washer, Steel Zinc.
1 ea. 3/32" Hex Allen Wrench, Long arm.
Note: The ZR encoder can mount to many types of C face devices. In
these mounting instructions, we will refer to the device as a motor.
Step 1
After carefully unpacking the unit, inspect to insure the motor
shaft is the correct size and free of all burrs or aberrations. Slide
the ZR Encoder over the motor shaft. DO NOT USE EXCESSIVE
FORCE: There is a rubber O-ring in the Encoder locking collar
that will provide a small amount of resistance as it engages the
shaft. If the encoder does not slide easily See Note 1 below.
Step 2
Install the four 3/8" 16 x 1.0" socket head cap screws with lock washers
through the holes in the Encoder C face and tighten securely to the motor.
Step 3
Insure the shaft locking collar is flush with the Encoder cover plate. Prevent
the motor shaft from turning (See Note 2 for additional information) and
tighten the four 4-40 Allen head cap screws in the locking collar evenly in a
crossing pattern. See Figure 1. Make sure the screws are securely tightened and
the front of the locking collar remains flush with the encoder cover plate. If the
collar does not turn true when the motor shaft is rotated, loosen the four screws
and repeat the procedure.
In Case of Difficulty:
Note 1: Make sure the four 4-40 Allen head cap screws in the front of the
Encoder locking collar are loose and the collar is not cocked or jammed.
Clean the shaft of any burrs using fine crocus cloth. The O- ring in the
Encoder locking collar may need a small amount of additional lubrication.
Note 2: When tightening the screws in the locking collar avoid holding the
motor shaft with anything that may scar or burr the shaft.
MODEL NO. DESCRIPTION PPR PART NUMBER
256 ZRJ0256A
NEMA C Face Encoder
0.625" DIA. 56C
(Replaces ARA) 1024 ZRJ1024A
256 ZRL0256A
ZR
NEMA C Face Encoder
1.0" DIA.
143TC, 145TC, 182C, 184C 1024 ZRL1024A
BORE SIZE
0.625
0.625
1.0
1.0
ORDERING INFORMATION

I
8371-717-767-6511
Open Collector Output Wiring
The ZSD sensors have open collector outputs. An open collector output
brings the uncommitted collector of the encoder switching device to the
external world. Because the collector element is not associated with the sensor
supply voltage, the sensor output collector may be “pulled up” to external
voltages (40 VDC max.) different than the encoder supply voltage . NPN open
collector outputs are current sinking devices. An output signal will not be
generated unless a pull-up resistor is connected from the open-collector to the
positive side of an external supply. The same supply can be used for powering
the unit and for the pull-up resistor.
SPECIFICATIONS
ELECTRICAL SPECIFICATIONS
1. SUPPLY VOLTAGE: 4.75 to 28 VDC, 100 mA max. with no output load
2. OUTPUTS: NPN Open Collector Transistor, VOH = 40 VDC max.; 20 mA
max. current. Incremental - Two square waves in quadrature with Channel
A leading Channel B for clockwise rotation.
3. MAX. FREQUENCY: 200 KHz
4. INDEX: NPN Open Collector Transistor, VOH = 40 VDC max.; 20 mA
max. current. Once per revolution centered over Output Channel A. Index is
a positive going pulse.
5. NOISE IMMUNITY: Tested to BS EN61000-6-2; BS EN50081-2;
BS EN61000-4-2; BS EN61000-4-3; BS EN61000-4-6; BS EN500811
6. SYMMETRY: 180° (±18°) electrical
7. QUAD PHASING: 90° (±22.5°) electrical
8. MIN EDGE SEP: 67.5° electrical
9. ACCURACY: Within 0.017° mechanical or 1 arc minute from true
position (for PPR>189)
MECHANICAL SPECIFICATIONS
1. MAXIMUM MECHANICAL SPEED: 8000 RPM
2. SHAFT SIZE: 0.25" (6.33 mm)
3. RADIAL SHAFT LOAD: 5 lbs. max. (2.25 kg)
4. AXIAL SHAFT LOAD: 5 lbs. max. (2.25 kg)
5. STARTING TORQUE: 0.4 oz-in. (2.82 N-mm) IP64
6. MOMENT OF INERTIA: 6.7 x 10-5 oz-in-sec2(4.8 gm-cm2)
7. CABLE CONNECTIONS:
Cable is 36" (914.4 mm) in length with 24 AWG conductors
8. WEIGHT: 3 oz. (85.0 g)
ENVIRONMENTAL SPECIFICATIONS
1. OPERATING TEMPERATURE: -20°C to 85°C
2. STORAGE TEMPERATURE: -25°C to +85°C
3. HUMIDITY: 98% RH non-condensing
4. VIBRATION: 10 g @ 58 to 500 Hz
5. SHOCK: 80 g @ 11 msec duration
6. SEALING: IP64 standard
MODEL ZSD - 0.25" SHAFT STANDARD SERVO MOUNT ROTARY PULSE
GENERATOR
DIMENSIONS In inches (mm)
MODEL NO. PPR PART NUMBER
ZSD
0.25" Shaft
Standard Servo Mount
Rotary Pulse Generators 1000
60
ZSD1000A
ZSD0060A
1200
100
ZSD1200A
ZSD0100A
2500
600
2000
500
ZSD2500A
ZSD0600A
ZSD2000A
ZSD0500A
DESCRIPTION
ORDERING INFORMATION
GENERAL DESCRIPTION
The Model ZSD encoder is ideal for applications requiring a miniature, high
precision, low cost encoder, designed with all metal construction for years of
trouble-free operation.
The NPN Open Collector outputs are each current limited to 20 mA. The
outputs are standard quadrature with index, available in resolutions up to 2500
pulses per shaft revolution. The quadrature separation is typically 90 electrical
degrees. Output A leads output B for clockwise rotation of the encoder shaft.
Notes: The following list of options are available, contact the factory for details
Additional wiring configurations, including M12 connectors and flying leads
Additional output configurations, including Line Driver and Push-Pull
Additional mounting and shaft/bore sizes
Additional pulses, including 10, 120, 200, 360, 512, 1024, 1500, 1800, and 2048
When using higher resolutions, use caution and verify input specifications to
avoid frequency limitations
CE approved models available
WIRE COLOR
Red
FUNCTION
+VDC
BlackCommon
WhiteData A
GreenData B
OrangeIndex Z
ACCESSORIES
RPGFC002Flexible Coupling (1" Length) 0.25" - 0.375"
RPGFC001Flexible Coupling (1" Length) 0.25" - 0.25"
PART NUMBERDESCRIPTIONMODEL NO.
RPGFC005Flexible Coupling (1" Length) 0.25" - 6 mm
RPGFC

I
838 www.redlion.net
MODELS ZOD AND ZOH - THRU-BORE ROTARY PULSE GENERATORS
(ZOH REPLACES THE MODEL RPGO)
GENERAL DESCRIPTION
The Model ZOD and ZOH are Thru-Bore Encoders. The ZOD has a bore of
0.25" (6.35 mm) and the ZOH is a 0.375" (9.5 mm) bore. These units are ideal
for applications requiring a miniature, high precision, low cost encoder,
designed with all metal construction for years of trouble-free operation.
The encoders have a flexible butterfly mount and blind hollow shaft. These
encoders use two set screws that are 90° apart to clamp the encoder's hub to the
motor shaft. The NPN Open Collector outputs are each current limited to 100
mA. The outputs are standard quadrature with index, and are available in
resolutions up to 2500 pulses per shaft revolution. The quadrature separation is
typically 90 electrical degrees. Output A leads output B for clockwise rotation
of the encoder shaft.
SPECIFICATIONS
ELECTRICAL SPECIFICATIONS
1. SUPPLY VOLTAGE: 4.75 to 28 VDC, 100 mA max. with no output load
2. OUTPUTS: NPN Open Collector Transistor, VOH = 40 VDC max.; 20 mA
max. current. Incremental - Two square waves in quadrature with A leading
B for clockwise rotation.
3. MAX. FREQUENCY: 200 KHz
4. INDEX: NPN Open Collector Transistor, VOH = 40 VDC max.; 20 mA max.
current. Once per revolution centered over output Channel A. Index is a
positive going pulse.
5. NOISE IMMUNITY: Tested to BS EN61000-6-2; BS EN50081-2;
BS EN61000-4-2; BS EN61000-4-3; BS EN61000-4-6; BS EN500811
6. SYMMETRY: 180° (±18°) electrical
7. QUAD PHASING: 90° (±22.5°) electrical
8. MIN EDGE SEP: 67.5° electrical
9. ACCURACY: Within 0.017° mechanical or 1 arc minute from true
position (for PPR>189)
MECHANICAL SPECIFICATIONS
1. MAXIMUM MECHANICAL SPEED: 8000 RPM
2. BORE SIZE:
ZOD: 0.25" (6.35 mm)
ZOH: 0.375" (9.5 mm)
3. BORE TOLERANCE: -0.0000"/+0.0006"
4. USER SHAFT TOLERANCES:
Radial Runout: 0.008" max
Axial Endplay: +/- 0.030" max
5. STARTING TORQUE: 0.6 oz-in (4.24 N-mm) IP64
6. MOMENT OF INERTIA:
6.7 x 10-5 oz-in-sec2(4.8 gm-cm2)
7. CABLE CONNECTIONS:
Cable is 36" (914.4 mm) in length with 24 AWG conductors
8. WEIGHT: 3 oz. (85.0 g)
ENVIRONMENTAL SPECIFICATIONS
1. OPERATING TEMPERATURE: -20°C to 85°C
2. STORAGE TEMPERATURE: -25°C to +85°C
3. HUMIDITY: 98% RH non-condensing
4. VIBRATION: 10 g @ 58 to 500 Hz
5. SHOCK: 80 g @ 11 msec duration
6. SEALING: IP64 standard
Open Collector Output Wiring
The ZOD and ZOH encoders have open collector outputs. An open collector
output brings the uncommitted collector of the encoder switching device to the
external world. Because the collector element is not associated with the sensor
supply voltage, the sensor output collector may be “pulled up” to external
voltages different than the encoder supply voltage (40 VDC maximum). NPN
open collector outputs are current sinking devices. An output signal will not be
generated unless a pull-up resistor is connected from the open-collector to the
positive side of an external supply. The same supply can be used for powering
the unit and for the pull-up resistor.
ORDERING INFORMATION
+VDC
FUNCTION
Red
WIRE COLOR
Common Black
Data A White
Data B Green
Index Z Orange
DIMENSIONS In inches (mm)
0.25" Thru-Bore
MODEL NO.
Thru-Bore Rotary Pulse
Generators
60 ZOD0060A
0.375" Thru-Bore
ZOH0060A
100 ZOD0100A ZOH0100A
DESCRIPTION
500 ZOD0500A ZOH0500A
PPR
PART NUMBER
600 ZOD0600A ZOH0600A
ZOD
&
ZOH 1000 ZOD1000A ZOH1000A
1200 ZOD1200A ZOH1200A
2000 ZOD2000A ZOH2000A
2500 ZOD2500A ZOH2500A
Notes: The following list of options are available, contact the factory for details
Additional wiring configurations, including M12 connectors
Additional output configurations, including Line Driver and Push-Pull
Additional mounting and shaft/bore sizes
Additional pulses, including 10, 120, 200, 360, 512, 1024, 1500, 1800, and 2048
When using higher resolutions, use caution and verify input specifications to
avoid frequency limitations
CE approved models available

I
8391-717-767-6511
OVARIOUS PULSE PER REVOLUTION (PPR) RATES
Up to 200 PPR for fine, high-resolution counting or
precision speed measurement from slow shaft speeds.
OUP TO 10 KHz OUTPUT FREQUENCY
OCURRENT SINK OUTPUT
OLENGTH SENSORS AVAILABLE WITH:
Single or Dual Ended Shaft
OSEALED PRECISION BALL BEARINGS
OVARIOUS CABLE LENGTHS AVAILABLE
DESCRIPTION
The units are rugged, incremental encoders that convert shaft rotation into a
current sinking pulse train.
Internally, a single L.E.D. light source and a photologic sensor in conjunction
with a shaft-mounted, durable, metal-etched encoder disc, provides signal
accuracy and reliability to 10 KHz. The DC input power supply requirement is
a versatile +8 to +35 VDC, and is reverse polarity protected. The NPN Open
Collector Transistor Output is current limited to 40 mA and is compatible with
most RLC counters, rate indicators, controllers and accessories.
All units are packaged in a rugged cast aluminum housing with a gasketed,
rear aluminum cover. The 3/8" (9.53 mm) diameter heavy duty stainless steel
shaft and sealed, lifetime-lubricated precision ball bearings are preloaded for
minimum end play and rated for continuous use up to 6000 RPM. They are
designed to meet NEMA 13/IP54 environmental requirements. All units are
supplied with 10 feet (3M) of PVC jacketed 3-wire, 22 AWG cable with
stranded shield wire and 100% foil shield coverage. Operating Temperature
range is -18 °C to +60 °C.
MODEL ZCG - SINGLE CHANNEL OUTPUT ROTARY PULSE GENERATOR
MODEL ZFG and ZGG - SINGLE CHANNEL OUTPUT LENGTH SENSORS
(Replaces MODELS RPGC, LSCS and LSCD respectively)
ORUGGED CAST ALUMINUM HOUSING
O3/8" DIA. STAINLESS STEEL SHAFT
OWIDE INPUT SUPPLY VOLTAGE RANGE &
LOW CURRENT OPERATION
OEASY INSTALLATION
Eliminates air-gap, sensing distance, and beam
alignment procedures of other types of sensing.
OIDEAL FOR DUSTY, DIRTY ENVIRONMENTS
Where “Non Contact” sensing means are impractical.
ZCG DIMENSIONS In inches (mm)
ROTARY PULSE GENERATOR
The ZCG can be direct-coupled to a machine shaft by means of a flexible
bellows, spring or rubber sleeve type coupler, etc., that allows for axial and radial
misalignment. They can also be coupled with instrument timing belts and pulleys
or gears. The housing may be rigidly face-mounted with the 4, #8-32 threaded
holes. The 3-wire shielded cable exits through a cord connector.
LENGTH SENSOR
The length sensors are available in both Single Ended Shaft (ZFG) and
Double Ended Shaft (ZGG) versions, both of which include a Stainless Steel
Handle Tube for mounting and 10 feet (3.05 M) of 3-wire shielded cable. When
mounted to a Length Sensor Hinge Clamp Assembly (See Model LSAHC001)
and coupled with one or two Measuring Wheels (See Measuring Wheels), a low
cost, versatile and highly accurate length measurement system can be
configured.
LENGTH SENSOR MEASUREMENT ACCURACY
Factors which affect measurement accuracy include Measuring Wheel
accuracy and wear, and material conditions. Ideally, materials which are hard,
thin and strong provide good readings. Conversely, soft, thick and elastic
materials can present problems in obtaining true readings. Count or Rate
Indicators with “input scaling” can compensate for Measuring Wheel wear and
material elasticity and compliance errors. In addition, English/Metric
conversions may also be accomplished.
Open Collector Output Wiring
The ZCG, ZFG, and ZGG series of sensors have open collector outputs. An
open collector output brings the uncommitted collector of the encoder
switching device to the external world. Because the collector element is not
associated with the sensor supply voltage, the sensor output collector may be
“pulled up” to external voltages (40 VDC max.) different than the encoder
supply voltage. NPN open collector outputs are current sinking devices. An
output signal will not be generated unless a pull-up resistor is connected from
the open-collector to the positive side of an external supply. The same supply
can be used for powering the unit and for the pull-up resistor.
LENGTH SENSOR MOUNTING CONSIDERATION
1. Length Sensors should be mounted so measuring wheel(s) contact ribbon,
strip or web as it passes over a roller. As an alternative, wheel(s) can be
driven by roller surface next to material being measured.
2. Note: The weight at the Length Sensor unit provides sufficient traction for
accurate operation when mounted, with arm angle from horizontal not
exceeding ±30o.
3. Tension on signal cable can cause wheel(s) to lift. Make sure cable is
clamped to machine frame near the unit and allow slack.

I
840 www.redlion.net
ELECTRICAL SPECIFICATIONS
1. SUPPLY VOLTAGE: +8 to +35 VDC (including power supply ripple) @ 50
mA max. (30 mA typ.); Reverse polarity protected.
2. OUTPUTS: NPN Open Collector Transistor;
VOH = 30 VDC max., VOL = 1 V max. @ 40 mA
Output current is limited to 40 mA.
3. OUTPUT FREQUENCY: Up to 10 KHz
4. CABLE CONNECTIONS:
RED = +VDC; BLACK = Common; WHITE = NPN O.C. Output.
MECHANICAL SPECIFICATIONS
1. MAXIMUM MECHANICAL SPEED: 6000 RPM
2. RADIAL SHAFT LOAD: 15 lbs. max. (66.7N)
3. AXIAL SHAFT LOAD: 15 lbs. max. (66.7N)
4. STARTING TORQUE: 3 oz.-in. (21.2N-mm)
5. MOMENT OF INERTIA:
Single Shaft = 2.82 x 10-4 oz. - in. - sec.2(1.99 x 10-3N - mm - sec2)
Dual Shaft = 3.09 x 10-4 oz. - in. - sec.2(2.19 x 10-3N - mm - sec2)
6. OPERATING TEMPERATURE: -18°C to +60°C
7. WEIGHT (LESS CABLE):
Rotary Pulse Generator = 15 oz (0.42 Kg)
Length Sensors = 22 oz (0.62 Kg)
WAVE OUTPUT DIAGRAM
ZFG DIMENSIONS
In inches (mm)
EQUIVALENT CIRCUIT & CONNECTIONS
ZGG DIMENSIONS In inches (mm)
This is the side view of the
Model ZFG. All other
dimensions (including the
handle tube) are the same
as the Model ZGG. See
below.
ORDERING INFORMATION
Square wave output for models
with PPR 1, 10, 12, 20, 60 and
100. Square wave, 50/50 duty
cycle ±10%.
Models that use 1/3 yd. or 1/3 mtr
wheels with internal ÷ 3 circuits.
66/33 duty cycle.
Models with 120 and 200 PPR
utilize internal doubling. (50 μsec
±20% neg. going pulse.)
ZFG FREQUENCY OUTPUT AT MAXIMUM 6000 RPM
20 60/Mt or Yd ZGG0020C
*200 600/Mt or Yd
60 60/Foot
3.333 10/Mt or Yd
.333 1/Mt or Yd
100 100/Foot
10 10/Foot
11/Foot
Length Sensor
Double Shaft
(Replaces LSCD)
*120 10/Inch
12 1/inch
ZGG0200C
ZGG0060C
RPGFC006
RPGFC003
RPGFC004
RPGFC002
ZGG03/3C
ZGG00/3C
ZGG0100C
ZGG0010C
ZGG0001C
ZGG0120C
ZGG0012C
60
20 60/Mt or Yd
ZCG0060C
ZFG0020C
*200 600/Mt or Yd
100
60 60/Foot
33.333 100/Mt or Yd
3.333 10/Mt or Yd
.333 1/Mt or Yd
*120
100 100/Foot
10
10 10/Foot
1
11/Foot
RPGFC
ZGG
ZCG
ZFG
Rotary Pulse Generator
(Replaces RPGC)
Length Sensor
Single Shaft
(Replaces LSCS)
*200
*120 10/Inch
12
12 1/inch
ZFG0200C
ZCG0100C
ZFG0060C
ZFG33/3C
ZFG03/3C
ZFG00/3C
ZCG0120C
ZFG0100C
ZCG0010C
ZFG0010C
ZCG0001C
ZFG0001C
PPR
ZCG0200C
ZFG0120C
OUTPUT
PULSE RATE
CODE
MODEL NO. DESCRIPTION
ZCG0012C
ZFG0012C
PART NUMBER
*RPM derated to 3600.
**RPM derated to 2200 RPM
(7300 Hz) due to internal
x2 circuitry.
7300 Hz**200
10000 Hz100
6000 Hz60
7300 Hz*120
1200 Hz12
1000 Hz
100 Hz1
10
PPR FREQ. @ 6000 RPM MAX.
* Rotary pulse generators and length sensors with 120 & 200 PPR outputs employ
an internal doubling circuit and deliver a fixed 50 µsec ±20% output pulse at the
leading and trailing edge of a passing slot. Additional doubling in external
indicators or circuits may not be applicable. These outputs are derated to 7300
Hz due to internal x2 circuitry. (See Wave Output Diagram)
Notes:
1. 25 and 50 foot cable versions available. Consult factory for details.
2. Wheels and mounting brackets are sold separately, see Length Sensor Accessories.
Flexible Coupling (1" Length) 0.375" - 6 mm
Flexible Coupling (1" Length) 0.375" - 0.375"
Flexible Coupling (1" Length) 0.375" - 0.500"
Flexible Coupling (1" Length) 0.250" - 0.375"

I
8411-717-767-6511
When the desired output of a length sensor and wheel combination is either
in inches, feet, yards, or meters selection of the proper combination is relatively
straight forward. For example, with a 1-foot wheel circumference, a 1 PPR
Rotary Pulse Generator will deliver 1 pulse/ft, 12 PPR would deliver 12
pulses/ft (1 pulse/inch); 100 PPR would yield 100 pulses/ft; and 120 PPR would
permit measuring to 1/10th of an inch (1/120th of a foot).
LENGTH SENSOR ACCESSORIES
SEPARATE LENGTH MEASURING WHEELS - DIMENSIONS In Inches (mm)
OF
WHEEL
CODE OK
WHEEL
CODE
FOR USE ON: Metal, paper,
foil, film and hard plastics.
Line contact on material
being measured,
convenient when available
measuring track is narrow
or for measuring on end of
roller beside passing
material.
Max. Speed: 600 RPM
FOR USE ON: Soft, smooth
materials such as soft
paper, matting,
cardboard, fine weave
textiles. Broad wheel
tread minimizes contact
pressure and tan
polyurethane tread
minimizes marking.
Max. Speed: 600 RPM
Balanced version of 1ft.
circumference available.
Balanced to ANSI S2.19-
1989 Quality Grade 6.3 @
3000 RPM.
FOR USE ON: Rubber,
coarse weave fabrics,
rough wood surfaces,
foam, insulation.
Max. Speed: 600 RPM
Balanced version of 1ft.
circumference available.
Balanced to ANSI S2.19-
1989 Quality Grade 6.3
@ 3000 RPM.
SELECTING APPROPRIATE WHEEL SIZE & PPR (Pulses Per Rev.) OF ROTARY PULSE GENERATOR
WHEELS & REPLACEMENT TIRES FOR CODE OR WHEELS
Note: After installation of measuring wheels, ensure guards,shields or other
devices are in place to protect personnel from rotating equipment.
OR
WHEEL
CODE
CIRCUMFERENCE PART NUMBER
1 foot (1/3 yd) ±0.40% WF1000OR
OR 1/3 meter ±0.40% WM0333OR
4/10ths yard ±0.40% WY0400OR
4/10ths meter ±0.40% WM0400OR
1 foot (1/3 yd) ±0.35% WF1000OF
OF 1/3 meter ±0.30% WM0333OF
4/10ths yard ±0.30% WY0400OF
4/10ths meter ±0.30% WM0400OF
BF (Balanced) 1 foot (1/3 yd) ±0.40% WF1000BF
WHEEL CODE TOLERANCE WHEEL CODE CIRCUMFERENCE TOLERANCE PART NUMBER
1 foot (1/3 yd) ±0.35% WF1000OK
OK 1/3 meter ±0.30% WM0333OK
4/10ths yard ±0.30% WY0400OK
4/10ths meter ±0.30% WM0400OK
BK (Balanced) 1 foot (1/3 yd) ±0.35% WF1000BK
Replacement Tires
for OR Wheels
1 foot (1/3 yd) TORF1000
1/3 meter TORM0333
4/10ths yard TORY0400
4/10ths meter TORM0400
ORDERING INFORMATION

I
842 www.redlion.net
The Length Sensor Hinge Clamp Assembly provides an easy method for
attachment and mounting of the length sensors and LSCB1 Conversion
Bracket. The removable top on the solid zinc LSAHC mounting block allows
quick installation of the Length Sensor handle tube and provides secure
clamping retention. The mounting block pivots freely in zinc right angle
brackets to allow mounting the assembly via clearance holes for 1/4" dia. bolts.
The lock washers must be used as indicated (between the bolt head and the
top clamp piece). Assemble the top clamp piece as follows.
1. Tighten both bolts so that the top clamp half draws down evenly on
the sensor tube.
2. Tighten the bolts until both lock washers are flat.
3. Then turn each bolt an additional ½ to ¾turn.
ORDERING INFORMATION
FRONT
VIEW
TOP
VIEW
DIMENSIONS In inches (mm)
CAUTION: Downward tension
on signal cable can cause
wheel(s) to lift. Make sure
cable is clamped to
machine frame near
encoder and allow slack.
NOTE: The weight at the
Length Sensor unit
provides sufficient traction
for accurate operation
when mounted as shown,
with arm angle from
horizontal not exceeding
±30o, and with hinge clamp
toward the far extreme of
the extension arm.
Length Sensors should be mounted so measuring
wheel(s) contact ribbon, strip or web as it passes over
a roller. As an alternative, wheel(s) can be driven by
roller surface next to material being measured.
MODEL NO. DESCRIPTION PART NUMBER
LSAHC LSAHC001Length Sensor Hinge Clamp Assembly
Lock washers (2) must be
installed between bolt heads
and top clamp piece.
E-clip retaining ring (2)
must be installed in slots.
MODEL LSAHC - LENGTH SENSOR HINGE CLAMP ASSEMBLY
Model ZGG shown
Model ZFG shown

I
8431-717-767-6511
DESCRIPTION
The units are rugged, incremental encoders that convert shaft rotation into a
current sinking pulse train.
Internally, a single L.E.D. light source and a photologic sensor in conjunction
with a shaft-mounted, durable, metal-etched encoder disc, provides signal
accuracy and reliability to 50 KHz. The DC input power supply requirement is
a versatile +8 to +28 VDC, and is reverse polarity protected. The NPN Open
Collector Transistor Output is current limited to 40 mA and is compatible with
most RLC counters, rate indicators, controllers and accessories.
All units are packaged in a rugged cast aluminum housing with a gasketed,
rear aluminum cover. The 3/8" (9.53 mm) diameter heavy duty stainless steel
shaft and sealed, lifetime-lubricated precision ball bearings are preloaded for
minimum end play and rated for continuous use up to 6000 RPM. They are
designed to meet NEMA 13/IP54 environmental requirements. All units are
supplied with 10 feet (3M) of PVC jacketed 3-wire, 22 AWG cable with
stranded shield wire and 100% foil shield coverage.
MODEL ZCH - QUADRATURE OUTPUT ROTARY PULSE GENERATOR
MODEL ZFH and ZGH - QUADRATURE OUTPUT LENGTH SENSORS
(Replaces MODELS RPGQ, LSQS and LSQD respectively)
ROTARY PULSE GENERATOR
The ZCH can be direct-coupled to a machine shaft by means of a flexible
bellows, spring or rubber sleeve type coupler, etc., that allows for axial and radial
misalignment. They can also be coupled with instrument timing belts and pulleys
or gears. The housing may be rigidly face-mounted with the 4, #8-32 threaded
holes. The 3-wire shielded cable exits through a cord connector.
LENGTH SENSOR
The length sensors are available in both Single Ended Shaft (ZFH) and
Double Ended Shaft (ZGH) versions, both of which include a Stainless Steel
Handle Tube for mounting and 10 feet (3.05 M) of 3-wire shielded cable. When
mounted to a Length Sensor Hinge Clamp Assembly (See Model LSAHC001)
and coupled with one or two Measuring Wheels (See Measuring Wheels), a low
cost, versatile and highly accurate length measurement system can be
configured.
LENGTH SENSOR MEASUREMENT ACCURACY
Factors which affect measurement accuracy include Measuring Wheel
accuracy and wear, and material conditions. Ideally, materials which are hard,
thin and strong provide good readings. Conversely, soft, thick and elastic
materials can present problems in obtaining true readings. Count or Rate
Indicators with “input scaling” can compensate for Measuring Wheel wear and
material elasticity and compliance errors. In addition, English/Metric
conversions may also be accomplished.
LENGTH SENSOR ACCESSORIES
The Length Sensor Hinge Clamp Assembly provides an easy method for
attachment & mounting the Length Sensors and LSCB1 Conversion Bracket.
The removable top on the solid aluminum LSAHC mounting block allows
quick installation of the Length Sensor handle tube and provides secure
clamping retention. The mounting block steel shaft pivots freely in oil
impregnated sintered bronze bushings, and aluminum right angle brackets
allow mounting the assembly via clearance holes for 1/4" (6.35 mm) dia. bolts
(See LSAHC Dimensions & Mounting).
Open Collector Output Wiring
The ZCH, ZFH, and ZGH series of sensors have open collector outputs. An
open collector output brings the uncommitted collector of the encoder
switching device to the external world. Because the collector element is not
associated with the sensor supply voltage, the sensor output collector may be
“pulled up” to external voltages (40 VDC max.) different than the encoder
supply voltage . NPN open collector outputs are current sinking devices. An
output signal will not be generated unless a pull-up resistor is connected from
the open-collector to the positive side of an external supply. The same supply
can be used for powering the unit and for the pull-up resistor.
O100, 200 & 500 PULSES PER REVOLUTION
OQUADRATURE CURRENT SINKING OUTPUTS TO 50 KHz
For position measurement, bi-directional counting
and systems with mechanical backlash
OSEALED PRECISION BALL BEARINGS
ORUGGED CAST ALUMINUM HOUSING
O3/8" DIA. STAINLESS STEEL SHAFT
OWIDE INPUT SUPPLY VOLTAGE RANGE & LOW CURRENT OPERATION
OVARIOUS CABLE LENGTHS AVAILABLE
ZCH DIMENSIONS In inches (mm)

I
844 www.redlion.net
SPECIFICATIONS
ELECTRICAL SPECIFICATIONS
1. SUPPLY VOLTAGE: +8 to +28 VDC (including power supply ripple) @ 50
mA max. (30 mA typ.); Reverse polarity protected.
2. OUTPUTS: NPN Open Collector Transistor, VOH = 30 VDC max., VOL = 1
V max @ 40 mA. Output current is limited to 40 mA. Incremental - Two
square waves in quadrature with Channel A leading B for clockwise rotation.
3. OUTPUT FREQUENCY: Up to 50 KHz
4. OUTPUT DUTY CYCLE: Channel A & B: 50/50 nominal. (See Figure 1,
Note 3)
5. QUADRATURE OUTPUT PHASE: 90° ±15° (See Figure 1, Note 3)
6. CABLE CONNECTIONS: RED = +VDC; BLACK = Common;
WHITE = Channel A Output; GREEN = Channel B Output.
MECHANICAL SPECIFICATIONS
1. MAXIMUM MECHANICAL SPEED: 6000 RPM
2. RADIAL SHAFT LOAD: 15 lbs. max. (66.7N)
3. AXIAL SHAFT LOAD: 15 lbs. max. (66.7N)
4. STARTING TORQUE: 3 oz.-in. (21.2N-mm)
5. MOMENT OF INERTIA:
Single Shaft = 1.03 x 10-4 oz. - in. - sec.2(7.30 x 10-4N - mm - sec2)
Dual Shaft = 1.30 x 10-4 oz. - in. - sec.2(9.21 x 10-4N - mm - sec2)
6. OPERATING TEMPERATURE: 0°C to +70°C
7. WEIGHT (LESS CABLE):
ZCH: 14.3 oz (406 g)
ZFH: 22.0 oz (623 g)
ZGH: 22.7 oz (643 g)
ZFH DIMENSIONS In inches (mm)
ZGH DIMENSIONS In inches (mm)
This is the side view of the Model
ZFH. All other dimensions (including
the handle tube) are the same as
the Model ZGH. See below.
EQUIVALENT CIRCUIT & CONNECTIONS
MODEL NO. DESCRIPTION PPR PART NUMBER
100
100
100
ZGH0100C
ZFH0100C
ZCH0100C
--
200
200
200
ZGH0200C
ZFH0200C
ZCH0200C
500
500
500
ZGH0500C
ZFH0500C
ZCH0500C
ZGH
ZFH
ZCH
Length Sensor
Double Shaft
(Replaces LSQD)
Length Sensor
Single Shaft
(Replaces LSQS)
Rotary Pulse Generator
(Replaces RPGQ)
RPGFC002
--
--
--
Flexible Coupling (1" Length) 0.375" - 6 mm
Flexible Coupling (1" Length) 0.375" - 0.500"
Flexible Coupling (1" Length) 0.375" - 0.375"
RPGFC
RPGFC006
RPGFC004
RPGFC003
Flexible Coupling (1" Length) 0.250" - 0.375"
* 25 and 50 foot cable versions available. Consult factory for details.
ORDERING INFORMATION
NOTES:
1. Channel A leads Channel B for clockwise shaft rotation when viewed from
housing front. Conversely, Channel B leads Channel A for Counterclockwise
shaft rotation.
2. The number of lines on the optical disc determines the Pulses Per Revolution
(PPR).
3. Duty Cycle is the relationship of output “High” time, “a”, to output “Low”
time, “b”, and is expressed as a High/Low percentage ratio, ie....% High time
= a/(a+b) x 100; % Low time = b/(a+b) x 100.
4. Quadrature Phase “c” is specified as the lead or lag between Channel A & B
in electrical degrees. Nominally 90° (1/4 cycle).
LENGTH SENSOR MOUNTING CONSIDERATION
1. Length Sensors should be mounted so measuring wheel(s) contact ribbon,
strip or web as it passes over a roller. As an alternative, wheel(s) can be driven
by roller surface next to material being measured.
2. Note: The weight at the Length Sensor unit provides sufficient traction for
accurate operation when mounted, with arm angle from horizonal not
exceeding ±30o.
3. Tension on signal cable can cause wheel(s) to lift. Make sure cable is clamped
to machine frame near thev unit and allow slack.

I
8451-717-767-6511
When the desired output of a length sensor and wheel combination is either
in inches, feet, yards, or meters selection of the proper combination is relatively
straight forward. For example, with a 1-foot wheel circumference, a 1 PPR
Rotary Pulse Generator will deliver 1 pulse/ft, 12 PPR would deliver 12
pulses/ft (1 pulse/inch); 100 PPR would yield 100 pulses/ft; and 120 PPR would
permit measuring to 1/10th of an inch (1/120th of a foot).
LENGTH SENSOR ACCESSORIES
SEPARATE LENGTH MEASURING WHEELS - DIMENSIONS In Inches (mm)
OF
WHEEL
CODE OK
WHEEL
CODE
FOR USE ON: Metal, paper,
foil, film and hard plastics.
Line contact on material
being measured,
convenient when available
measuring track is narrow
or for measuring on end of
roller beside passing
material.
Max. Speed: 600 RPM
FOR USE ON: Soft, smooth
materials such as soft
paper, matting,
cardboard, fine weave
textiles. Broad wheel
tread minimizes contact
pressure and tan
polyurethane tread
minimizes marking.
Max. Speed: 600 RPM
Balanced version of 1ft.
circumference available.
Balanced to ANSI S2.19-
1989 Quality Grade 6.3 @
3000 RPM.
FOR USE ON: Rubber,
coarse weave fabrics,
rough wood surfaces,
foam, insulation.
Max. Speed: 600 RPM
Balanced version of 1ft.
circumference available.
Balanced to ANSI S2.19-
1989 Quality Grade 6.3
@ 3000 RPM.
SELECTING APPROPRIATE WHEEL SIZE & PPR (Pulses Per Rev.) OF ROTARY PULSE GENERATOR
WHEELS & REPLACEMENT TIRES FOR CODE OR WHEELS
Note: After installation of measuring wheels, ensure guards,shields or other
devices are in place to protect personnel from rotating equipment.
OR
WHEEL
CODE
CIRCUMFERENCE PART NUMBER
1 foot (1/3 yd) ±0.40% WF1000OR
OR 1/3 meter ±0.40% WM0333OR
4/10ths yard ±0.40% WY0400OR
4/10ths meter ±0.40% WM0400OR
1 foot (1/3 yd) ±0.35% WF1000OF
OF 1/3 meter ±0.30% WM0333OF
4/10ths yard ±0.30% WY0400OF
4/10ths meter ±0.30% WM0400OF
BF (Balanced) 1 foot (1/3 yd) ±0.40% WF1000BF
WHEEL CODE TOLERANCE WHEEL CODE CIRCUMFERENCE TOLERANCE PART NUMBER
1 foot (1/3 yd) ±0.35% WF1000OK
OK 1/3 meter ±0.30% WM0333OK
4/10ths yard ±0.30% WY0400OK
4/10ths meter ±0.30% WM0400OK
BK (Balanced) 1 foot (1/3 yd) ±0.35% WF1000BK
Replacement Tires
for OR Wheels
1 foot (1/3 yd) TORF1000
1/3 meter TORM0333
4/10ths yard TORY0400
4/10ths meter TORM0400
ORDERING INFORMATION

I
846 www.redlion.net
The Length Sensor Hinge Clamp Assembly provides an easy method for
attachment and mounting of the length sensors and LSCB1 Conversion
Bracket. The removable top on the solid zinc LSAHC mounting block allows
quick installation of the Length Sensor handle tube and provides secure
clamping retention. The mounting block pivots freely in zinc right angle
brackets to allow mounting the assembly via clearance holes for 1/4" dia. bolts.
The lock washers must be used as indicated (between the bolt head and the
top clamp piece). Assemble the top clamp piece as follows.
1. Tighten both bolts so that the top clamp half draws down evenly on
the sensor tube.
2. Tighten the bolts until both lock washers are flat.
3. Then turn each bolt an additional ½ to ¾turn.
ORDERING INFORMATION
FRONT
VIEW
TOP
VIEW
DIMENSIONS In inches (mm)
CAUTION: Downward tension
on signal cable can cause
wheel(s) to lift. Make sure
cable is clamped to
machine frame near
encoder and allow slack.
NOTE: The weight at the
Length Sensor unit
provides sufficient traction
for accurate operation
when mounted as shown,
with arm angle from
horizontal not exceeding
±30o, and with hinge clamp
toward the far extreme of
the extension arm.
Length Sensors should be mounted so measuring
wheel(s) contact ribbon, strip or web as it passes over
a roller. As an alternative, wheel(s) can be driven by
roller surface next to material being measured.
MODEL NO. DESCRIPTION PART NUMBER
LSAHC LSAHC001Length Sensor Hinge Clamp Assembly
Lock washers (2) must be
installed between bolt heads
and top clamp piece.
E-clip retaining ring (2)
must be installed in slots.
MODEL LSAHC - LENGTH SENSOR HINGE CLAMP ASSEMBLY
Model ZGH shown
Model ZFH shown

I
8471-717-767-6511
MODEL ZUK - LARGE THRU-BORE ROTARY PULSE GENERATORS
SPECIFICATIONS
ELECTRICAL SPECIFICATIONS
1. SUPPLY VOLTAGE: 4.75 to 28 VDC, 100 mA max. (no load)
2. OUTPUTS: NPN Open Collector Transistor, VOH = 40 VDC max.; 20 mA
max. current. Incremental - two square waves in quadrature with A leading
B for clockwise rotation.
3. MAX. PULSE RATE: 250 KHz
4. INDEX: NPN Open Collector Transistor, VOH = 40 VDC max.; 20 mA max.
current. Once per revolution centered over output Channel A. Index is a
positive going pulse.
5. MAXIMUM MECHANICAL SPEED: 4000 RPM
6. MIN EDGE SEP: 45° electrical min, 63° electrical or better typical
7. RISE TIME: Less than 1 microsecond
8. ACCURACY: Within 0.01° mechanical from one cycle to any other cycle,
or 0.6 arc minutes.
MECHANICAL SPECIFICATIONS
1. BORE SIZE: 1.125" (28 mm)
2. BORE TOLERANCES: -0.0000"/+0.0008"
3. USER SHAFT TOLERANCES:
Radial Runout: 0.005" max
Axial Endplay: +/- 0.050" max
4. STARTING TORQUE: 4.0 oz-in typical (28.24 N-mm) IP66
5. MOMENT OF INERTIA:
7.6 x 10-4 oz-in-sec2
6. MAX ACCELERATION: 1 X 105rad/sec2
7. ELECTRICAL CONNECTOR: 7-pin MS type connector
8. HOUSING: Nylon composite
9. MOUNTING: 2.25" to 2.75" B.C. 3-point flex mount
10. WEIGHT: 8 oz. (226.7 g)
ENVIRONMENTAL SPECIFICATIONS
1. OPERATING TEMPERATURE: -20°C to 85°C
2. STORAGE TEMPERATURE: -20°C to 85°C
3. HUMIDITY: 98% RH non-condensing
4. VIBRATION: 20 g @ 5 to 2000 Hz
5. SHOCK: 80 g @ 11 msec duration
6. SEALING: IP66
GENERAL DESCRIPTION
The ZUK is a high performance unit that is ideal for fast revving motor mount
applications. This industrial strength model features the largest thru bore
available in a 2.5" encoder, mounting directly on shafts as large as 1.125" (28
mm.) The injection molded housing is grooved with “cooling fins”, and can take
the extreme heat of the motion control industry.
The ZUK comes equipped with a 3 point Flex Mount adapting to both 2.25"
and 2.75" motor faces. It is also available with an optional “tether arm”
mounting kits for additional motor compatibility.
This revolutionary encoder can also be adapted to various standard and metric
sized motor shafts by using an accessory sleeve kit, or individual sleeves (Sold
separately).
Electrically the ZUK offers NPN open collector outputs, each limited to 100
mA. The outputs are standard quadrature with index and are also available with
quadrature reverse phasing for the typical motor drive controller application.
The quadrature separation is 90° with output A leading output B for clockwise
rotation. Output B leads output A for the reverse phased output, for clockwise
rotation.
Open Collector Output Wiring
The ZUK series of sensors have open collector outputs. An open collector
output brings the uncommitted collector of the encoder switching device to the
external world. Because the collector element is not associated with the sensor
supply voltage, the sensor output collector may be “pulled up” to external
voltages different than the encoder supply voltage (40 VDC maximum). NPN
open collector outputs are current sinking devices. An output signal will not be
generated unless a pull-up resistor is connected from the open-collector to the
positive side of an external supply. The same supply can be used for powering
the unit and for the pull-up resistor.
+VDC
FUNCTION
RedA
CABLE WIRE COLORPIN
Common BlackB
Data A WhiteC
Data B GreenD
CASE
Data Z
Bare
Orange
F
E
DIMENSIONS In inches (mm)

I
848 www.redlion.net
1.125" Thru-Bore
MODEL NO.
Large Thru-Bore
Rotary Pulse Generators
60 ZUK0060H
100 ZUK0100H
DESCRIPTION
500 ZUK0500H
PPR
PART NUMBER
600 ZUK0600H
ZUK
1000 ZUK1000H
1200 ZUK1200H
2000 ZUK2000H
2500 ZUK2500H
Notes: The following list of options are available, contact the factory for details
Additional wiring configurations, including M12 connectors
Additional output configurations, including Line Driver and Push-Pull
Additional bore sizes
Additional pulses, including 10, 120, 200, 360, 512, 1024, 1500, 1800, and 2048
When using higher resolutions, use caution and verify input specifications to
avoid frequency limitations
CE approved models available
Additional Tether Arm mounting kits available
Additional sleeve kits and individual sleeves available for “sizing down” bores
for metric and standard sized shafts
ORDERING INFORMATION ACCESSORIES
CCBRPG037-Pin Connector with 20 ft Cable
CCBRPG
RPGBIM00
CCBRPG027-Pin Connector with 10 ft Cable
CCBRPG007-Pin Connector
RPGBII00
PART NUMBERDESCRIPTION
RPGMB001
RPGMK002
RPGMK003
Magnetic Coupling Kit
Standard Tether Arm Kit 4.5 Inch
Elongated Tether Arm Kit 8.5 Inch
RPGMB
RPGMK
RPGBSI010.625 Inch Bore Sleeve
MODEL NO.
RPGBSI
RPGBI
Inch Bore Insert Kit (includes 0.5, 0.625, 0.875,
and 1 inch sleeves)
Large Metric Bore Insert Kit (includes 19, 20, 24,
and 25 mm sleeves)

I
8491-717-767-6511
MODELS ZPJ - LARGE THRU-BORE ROTARY PULSE GENERATOR
GENERAL DESCRIPTION
The Model ZPJ ia a thru-bore encoder with a bore of 0.625" (15.875 mm).
Additional mounting kits are available to adapt it to both standard and metric
shaft sizes. This unit is ideal for applications requiring a miniature, high
precision, low cost encoder, designed with all metal construction for years of
trouble-free operation.
The ZPJ encoder has a flexible arm mount and blind hollow shaft. It uses two
set screws that are 90° apart to clamp the encoder's hub to the motor shaft. The
NPN Open Collector outputs are each current limited to 20 mA. The outputs are
standard quadrature with index, and are available in resolutions up to 2500
pulses per shaft revolution. The quadrature separation is typically 90 electrical
degrees. Output A leads output B for clockwise rotation of the encoder shaft.
Open Collector Output Wiring
The ZPJ encoder has open collector outputs. An open collector output brings
the uncommitted collector of the encoder switching device to the external
world. Because the collector element is not associated with the sensor supply
voltage, the sensor output collector may be “pulled up” to external voltages
different than the encoder supply voltage (40 VDC maximum). NPN open
collector outputs are current sinking devices. An output signal will not be
generated unless a pull-up resistor is connected from the open-collector to the
positive side of an external supply. The same supply can be used for powering
the unit and for the pull-up resistor.
ENVIRONMENTAL SPECIFICATIONS
1. OPERATING TEMPERATURE: 0°C to +70°C
2. STORAGE TEMPERATURE: -40°C to +100°C
3. HUMIDITY: 98% RH non-condensing
4. VIBRATION: 10 g @ 58 to 500 Hz
5. SHOCK: 50 g @ 11 msec duration
6. SEALING: IP64
SPECIFICATIONS
ELECTRICAL SPECIFICATIONS
1. SUPPLY VOLTAGE: 4.75 to 28 VDC, 100 mA max.
2. OUTPUTS: NPN Open Collector Transistor, VOH = 40 VDC max.; 20 mA
max. current. Incremental - Two square waves in quadrature with A leading
B for clockwise rotation.
3. MAX. FREQUENCY: 200 KHz
4. INDEX: NPN Open Collector Transistor, VOH = 40 VDC max.; 20 mA max.
current. Once per revolution centered over output Channel A. Index is a
positive going pulse.
5. MAXIMUM MECHANICAL SPEED: 7500 RPM
6. NOISE IMMUNITY: Tested to BS EN61000-6-2; BS EN50081-2;
BS EN61000-4-2; BS EN61000-4-3; BS EN61000-4-6; BS EN55011
7. SYMMETRY: 180° (±18°) electrical
8. QUAD PHASING: 90° (±22.5°) electrical
9. MIN EDGE SEP: 67.5° electrical
10. ACCURACY: Within 0.01° mechanical from one cycle to any other cycle,
or 0.6 arc minutes.
MECHANICAL SPECIFICATIONS
1. BORE SIZE: 0.625" (15.875 mm)
2. BORE TOLERANCES: -0.0000"/+0.0006"
3. USER SHAFT TOLERANCES:
Radial Runout: 0.007" max
Axial Endplay: +/- 0.030" max
4. STARTING TORQUE: 2.5 oz-in (17.65 N-mm) IP64
5. MOMENT OF INERTIA:
3.9 x 10-4 oz-in-sec2(27.5 gm-cm2)
6. MAX ACCELERATION: 1 X 105rad/sec2
7. ELECTRICAL CONNECTION: 36" (914.4 mm) cable (foil and braid
shield, 24 AWG conductors
8. HOUSING: Black non-corosive finish
9. MOUNTING: Flex arm 1.06" to 1.81" radius mounting
10. WEIGHT: 3.5 oz. typical (99.2 g)
+VDC
FUNCTION
Red
WIRE COLOR
Common Black
Data A White
Data B Green
Index Z Orange
DIMENSIONS In inches (mm)

I
850 www.redlion.net
MODEL NO.
Large Thru-Bore Rotary
Pulse Generators
60 ZPJ0060A
100 ZPJ0100A
DESCRIPTION
500 ZPJ0500A
PPR PART NUMBER
600 ZPJ0600A
ZPJ
1000 ZPJ1000A
1200 ZPJ1200A
2000 ZPJ2000A
2500 ZPJ2500A
Notes: The following list of options are available, contact the factory for details
Additional wiring configurations, including M12 connectors
Additional output configurations, including Line Driver and Push-Pull
Additional mounting and bore sizes
Additional pulses, including 10, 120, 200, 360, 512, 1024, 1500, 1800, and 2048
When using higher resolutions, use caution and verify input specifications to
avoid frequency limitations
CE approved models available
DESCRIPTION PART NUMBER
1.575" (40 mm) Bolt Circle Flex Mount Kit RPGMK000
1.811" (46 mm) Bolt Circle Flex Mount Kit RPGMK001
RPGBII01
Large Metric Bore Insert Kit (includes 11, 12, and
14 mm sleeves)
Small Metric Bore Insert Kit (includes 6, 8, and
10 mm sleeves)
RPGBIM01
RPGBIM02
Mag Coupling Kit (no adapter sleeve necessary) RPGMB001
ORDERING INFORMATION
ACCESSORIES
Inch Std Bore Insert Kit (includes 0.25, 0.375, and
0.50 inch sleeves)

I
8511-717-767-6511
These heavy duty units feature a heavy cast aluminum housing with 1/4"
thick aluminum cover plates and 0-ring seals. Heavy duty bearings are double-
sealed and allow radial shaft loading of 30 lbs (13.6 Kg).
A 1/2" (12.7 mm) NPT Conduit entry permits signal wiring to be run via flex-
conduit to an internal terminal block. Electrical characteristics are identical to
those for the Model ZBG. Terminal board markings correspond to the Pin-Out
identification of the ZBG.
zCURRENT SINK OUTPUTS
zHIGH PULSE PER REVOLUTION (PPR) RATES
Up to 1200 PPR for fine, high-resolution counting or precision speed
measurement from slow shaft speeds.
zQUADRATURE OUTPUT
For position measurement, bi-directional counting and in systems with
backlash counting requirements.
zAVAILABLE WITH MS AND M12 CONNECTORS
MODELS ZBG AND ZBH STANDARD DUTY ENCODER (Replaces MODEL RPGB)
MODEL ZHG HEAVY DUTY ENCODER (Replaces MODEL RPGH)
The units contain an L.E.D. light source and a photo sensor that scans a shaft-
mounted, slotted disc. An internal pulse-shaping amplifier circuit delivers a
rectangular pulse signal from the current sinking output in response to the passing
slots as it rotates. They can be direct-coupled to a machine shaft by means of a
flexible-bellows, spring, or rubber sleeve type coupling that allows for axial and
radial misalignment. They can also be coupled with light instrument timing-belts.
Timing-belt drives also allow convenient gear-up or gear-down speed ratio
changes that can be useful for obtaining non-standard PPR rates.
MODEL ZHG - HEAVY-DUTY SEALED HOUSING
(Replaces Model RPGH)
DIMENSIONS In inches (mm)
MODEL ZBG and ZBH - FOR GENERAL
INDUSTRIAL SERVICE (Replaces Model RPGB)
DIMENSIONS In Inches (mm)

I
852 www.redlion.net
SPECIFICATIONS
ELECTRICAL SPECIFICATIONS
1. SUPPLY VOLTAGE: +5 to +28 VDC @ 80 mA max.
2. OUTPUT: Current Sinking
ZBG and ZHG (Single Channel): 250 mA max.
ZBH (Quadrature): 250 mA max. current per output. Incremental - two
square waves in quadrature with Channel A leading Channel B for clockwise
rotation. (Quad. Phase relationship is 90° ±36°)
Note: NPN Transistor outputs have 1.5 K
Ω
load resistors returned to supply
for internal feed back purposes. This does not interfere with the ability to
use these outputs as conventional “Open-Collector” outputs as long as
the supply voltage for the ZB is supplied by the indicator or control
receiving its output signal. The ZB’s internal load resistor also allows the
output to be used as a current source, however, load current must be
limited to 1 mA max.
3. MAXIMUM SHAFT SPEED: 6000 RPM
4. MAXIMUM FREQUENCY:
Single Channel: 20 KHz
Quadrature: 20 KHz
PPR available up to 1270 for both single channel and quadrature.
MECHANICAL SPECIFICATIONS
1. RADIAL SHAFT LOAD
ZBG & ZBH: 20 lbs. operating (9 kg)
ZHG: 30 lbs. operating (13.6 kg)
2. AXIAL SHAFT LOAD: 10 lbs operating (4.5 kg)
3. STARTING TORQUE:
ZBG & ZBH: 0.38 oz-in (2.68 N-mm)
ZHG: 1 oz-in (7.06 N-mm)
4. MOMENT OF INERTIA: 6.5 x 10-6 oz-in-sec2
5. CONNECTIONS: Consult factory for special lengths.
6-pin MS Connector: #14S-6P-6 or cable/connector assembly (4-wire
shielded), 10´ (3.05 m), 25´ (7.62 m), or 50´ (15.24 m) long, must be
ordered separately.
M12 Cable/Connector Assembly: 5-Wire Shielded, 4 meters or 10 meters
long, must be ordered separately.
6. HOUSING: Black non-corrosive finished 6063-T6 aluminum.
7. BEARINGS: ABEC3 double sealed ball bearings
8. WEIGHT:
ZBG & ZBH: 10 oz (283.5 g)
ZHG: 3.8 lbs (1.72 Kg)
ENVIRONMENTAL SPECIFICATIONS
1. OPERATING TEMPERATURE: 0 ° to 85 °C
2. STORAGE TEMPERATURE: -25°C to +85°C
3. HUMIDITY: 98% RH non-condensing
4. VIBRATION: 10 g @ 58 to 500 Hz
5. SHOCK: 50 g @ 11 msec duration
ELECTRICAL CONNECTIONS
ZBH06003600
ZBH01003100
ZBH06002
ZBH05002
ZBH01202
ZBG06003
ZBH01002
ZBH00122
ZBH00102
ZBG01003
600
500
120
600
100
12
10
100
Dual Channel
General Service
6-Pin MS Connector
Single Channel General Service
M12 Connector
ZBG120021200
ZHG12004
ZBG06002
ZHG10004
ZBG01002
ZHG06004
ZBG00602
ZBG10002
PART NUMBER
1200
600
1000
100
600
60
1000
Single Channel
Heavy Duty
Rotary Pulse Generator
Single Channel
General Service
6-Pin MS Connector
ZBH
ZHG
ZBG
PPR*DESCRIPTIONMODEL NO.
ORDERING INFORMATION
* Other PPR’s available on special order, only stock PPR’s listed.
Dual Channel General Service
M12 Connector
Cable Connections
The tables below list the pin connections from the ZBG and ZHG single
channel and ZBH quadrature encoder to the optional CCARPG or CCM cable.
—
5E
GREEN4D
WHITE3CDATA A
BLACK2BCOMMON
RED1A+VDC
M12 CONN
6-PIN
MS CONN
FUNCTION CABLE WIRE
COLOR
DATA B if appl. (quad)
NO CONNECTION
CCARPG5050 Feet 6-Pin 4-Wire Cable/Connector
CCARPG2525 Feet 6-Pin 4-Wire Cable/Connector
CCARPG00
CCARPG0110 Feet 6-Pin 4-Wire Cable/Connector
Mating 6-Pin MS Connector
RPGFC006
RPGFC003
Flexible Coupling (1" Length) 0.375"-6 mm
Flexible Coupling (1" Length) 0.375"-0.375"
RPGFC004
RPGFC002
Flexible Coupling (1" Length) 0.375"-0.500"
Flexible Coupling (1" Length) 0.250"-0.375"
RPGFC
CCM1289010 Meter 8-Pin 5-Wire M12 Cable/Connector
PART NUMBER
CCM128944 Meter 8-Pin 5-Wire M12 Cable/Connector
DESCRIPTIONMODEL NO.
ACCESSORIES

I
8531-717-767-6511
When the desired output of a length sensor and wheel combination is either in feet or inch units, selection
of the proper combination is relatively straight forward. For example, with a 1-foot wheel circumference, a
1 PPR Rotary Pulse Generator will deliver 1 pulse/ft, 12 PPR would deliver 12 pulses/ft (1 pulse/inch); 100
PPR would yield 100 pulses/ft; and 120 PPR would permit measuring to 1/10th of an inch (1/120th of a foot).
SELECTING APPROPRIATE WHEEL SIZE & PPR (Pulses Per Rev.) OF ROTARY PULSE GENERATOR
LENGTH SENSOR CONVERSION BRACKET (P/N LSCB1000)
ADAPTS ZBG and ZBH ROTARY PULSE GENERATOR TO LENGTH MEASUREMENT
DESCRIPTION
This conversion bracket allows the customer to assemble a custom length
sensor by purchasing the following items separately.
1. Length Sensor Conversion Bracket (P/N LSCB1000)
2. ZBG or ZBH with appropriate PPR and Single Channel or Quadrature
Output.
3. One or two measuring wheels. Install OF & OK measuring wheels with set
screw hub facing ZBG shaft (as shown). Apply thread locking material to wheel
set screw threads during installation to ZBG or ZBH shaft.
4. Hinge Clamp Assembly (P/N LSAHC001)
Note: To complete installation, insure guards, shields or other devices are in
place to protect personnel from rotating equipment.
The tubular arm length of this bracket, related to the wheel axis center-line of
the ZBG or ZBH is 6.8" similar to the length sensors. The 10´ long, 4-wire,
shielded cable (included with conversion bracket) has the same color coding as
described for the ZBG and ZBH cable P/N CCARPG01. Screws for mounting
the conversion bracket are included.
LENGTH SENSOR MEASUREMENT ACCURACY
Factors which affect measurement accuracy include Measuring Wheel
accuracy and wear, and material conditions. Ideally, materials which are hard,
thin and strong provide good readings, conversely, soft, thick and elastic
materials can present problems in obtaining true readings. The great majority of
these situations, where this effect is consistant, can be compensated for by
applying a multiplier to the quadrature output pulse train so as to obtain a
corrected measurement. Counter or Rate Indicators with “input scaling” can
compensate for Measuring Wheel wear and material elastic and compliance
errors. In addition, English/Metric conversions may also be accomplished (See
RLC catalog for more information).
ORDERING INFORMATION
LSAHC001
Hinge Clamp Assembly for Length Sensors &
Conversion Bracket (Above)
--
LSCB1099
Length Sensor Conversion Bracket for ZBG and ZBH
(Special Length)
LSCB1000Length Sensor Conversion Bracket for ZBG and ZBH
LSCB
PART NUMBERDESCRIPTIONMODEL NO.
LENGTH SENSOR ACCESSORIES
SEPARATE LENGTH MEASURING WHEELS - DIMENSIONS In Inches (mm)
OF
WHEEL
CODE OK
WHEEL
CODE
FOR USE ON: Metal, paper,
foil, film and hard plastics.
Line contact on material
being measured,
convenient when available
measuring track is narrow
or for measuring on end of
roller beside passing
material.
Max. Speed: 600 RPM
FOR USE ON: Soft, smooth
materials such as soft
paper, matting,
cardboard, fine weave
textiles. Broad wheel
tread minimizes contact
pressure and tan
polyurethane tread
minimizes marking.
Max. Speed: 600 RPM
Balanced version of 1ft.
circumference available.
Balanced to ANSI S2.19-
1989 Quality Grade 6.3 @
3000 RPM.
FOR USE ON: Rubber,
coarse weave fabrics,
rough wood surfaces,
foam, insulation.
Max. Speed: 600 RPM
Balanced version of 1ft.
circumference available.
Balanced to ANSI
S2.19-1989 Quality
Grade 6.3 @ 3000
RPM.
OR
WHEEL
CODE

I
854 www.redlion.net
The Length Sensor Hinge Clamp Assembly provides an easy method for
attachment and mounting of the Length Sensors and LSCB1 Conversion
Bracket. The removable top on the solid zinc LSAHC mounting block
allows quick installation of the Length Sensor handle tube and provides
secure clamping retention. The mounting block pivots freely in zinc right
angle brackets to allow mounting the assembly via clearance holes for 1/4"
dia. bolts.
The lock washers must be used as indicated (between the bolt head and
the top clamp piece). Assemble the top clamp piece as follows.
1. Tighten both bolts so that the top clamp half draws down evenly on
the sensor tube.
2. Tighten the bolts until both lock washers are flat.
3. Then turn each bolt an additional ½ to ¾turn.
ORDERING INFORMATION
FRONT
VIEW
TOP
VIEW
DIMENSIONS In inches (mm)
CAUTION: Downward tension
on signal cable can cause
wheel(s) to lift. Make sure
cable is clamped to
machine frame near
encoder and allow slack.
NOTE: The weight at the
Length Sensor unit
provides sufficient traction
for accurate operation
when mounted as shown,
with arm angle from
horizontal not exceeding
±30°, and with hinge clamp
toward the far extreme of
the extension arm.
Length Sensors should be mounted so measuring
wheel(s) contact ribbon, strip or web as it passes over
a roller. As an alternative, wheel(s) can be driven by
roller surface next to material being measured.
MODEL NO. DESCRIPTION PART NUMBER
LSAHC LSAHC001Length Sensor Hinge Clamp Assembly
Lock washers (2) must be
installed between bolt heads
and top clamp piece.
E-clip retaining ring (2)
must be installed in slots.
MODEL LSAHC - LENGTH SENSOR HINGE CLAMP ASSEMBLY
Note: After installation of measuring wheels, ensure guards,shields or other
devices are in place to protect personnel from rotating equipment.
WHEEL CODE CIRCUMFERENCE TOLERANCE PART NUMBER
1 foot (1/3 yd) ±0.35% WF1000OK
OK 1/3 meter ±0.30% WM0333OK
4/10ths yard ±0.30% WY0400OK
4/10ths meter ±0.30% WM0400OK
BK (Balanced) 1 foot (1/3 yd) ±0.35% WF1000BK
Replacement Tires
for OR Wheels
1 foot (1/3 yd) TORF1000
1/3 meter TORM0333
4/10ths yard TORY0400
4/10ths meter TORM0400
TOLERANCEWHEEL CODE CIRCUMFERENCE PART NUMBER
1 foot (1/3 yd) ±0.40% WF1000OR
OR 1/3 meter ±0.40% WM0333OR
4/10ths yard ±0.40% WY0400OR
4/10ths meter ±0.40% WM0400OR
1 foot (1/3 yd) ±0.35% WF1000OF
OF 1/3 meter ±0.30% WM0333OF
4/10ths yard ±0.30% WY0400OF
4/10ths meter ±0.30% WM0400OF
BF (Balanced) 1 foot (1/3 yd) ±0.40% WF1000BF
WHEELS & REPLACEMENT TIRES FOR CODE OR WHEELS
ORDERING INFORMATION
Model ZGH Shown
Model ZFH Shown

I
8551-717-767-6511
SPECIFICATIONS
ELECTRICAL SPECIFICATIONS
1. SUPPLY VOLTAGE: 4.75 to 28 VDC, 100 mA max. with no output load
2. OUTPUTS: NPN Open Collector Transistor, VOH = 40 VDC max.; 100
mA max. current. incremental - two square waves in quadrature with A
leading B for clockwise shaft rotation.
3. MAX. FREQUENCY: Up to 1 MHz
4. INDEX: NPN Open Collector Transistor, VOH = 40 VDC max.; 100 mA
max. current. Once per revolution centered over Output Channel A. Index is
a positive pulse.
5. INPUT RIPPLE: 100 mV peak to peak at 0 to 100 KHz.
6. NOISE IMMUNITY: Tested to BS EN61000-4-2; IEC801-3;
BS EN61000-4-4; DDENV 50141; DDENV 50204; BS EN55022;
BS EN61000-6-2; BS EN50081-2
7. SYMMETRY:
1 to 6000 CPR: 180° (±18°) electrical at 100 KHz output
6001 to 20,480 CPR: 90° (±36°) electrical
8. QUAD PHASING:
1 to 6000 CPR: 90° (±22.5°) electrical
6001 to 20,480 CPR: 90° (±36°) electrical
9. MIN EDGE SEP:
1 to 6000 CPR: 67.5° electrical at 100 KHz output
6001 to 20,480 CPR: 54° electrical
>20,480 CPR: 50° electrical
10. RISE TIME: Less than 1 microsecond
11. ACCURACY:
Instrument and Quadrature Error: From one cycle to any other cycle.
200 to 1999 CPR: 0.017° mechanical (1.0 arc minutes)
2000 to 3000 CPR: 0.01° mechanical (0.6 arc minutes)
Interpolation error (units >3000 CPR only) within 0.005° mechanical. (Total
Optical Encoder Error = Instrument + Quadrature + Interpolation)
MECHANICAL SPECIFICATIONS
1. MAXIMUM MECHANICAL SPEED: 8000 RPM
2. SHAFT DIAMETER:
ZDH: 0.25" (6.3 mm)
ZNH: 0.375" (9.5 mm)
3. RADIAL SHAFT LOAD: 80 lbs. max. Rated load of 20 to 40 lbs. for
bearing life of 1.5 X 109revolutions.
4. AXIAL SHAFT LOAD: 80 lbs. max. Rated load of 20 to 40 lbs. for
bearing life of 1.5 X 109revolutions.
5. STARTING TORQUE: 3.0 oz-in. (21.18 N-mm)
MODEL ZDH - 2" FLANGE MOUNT ROTARY PULSE GENERATOR
MODEL ZNH - 2.5" FLANGE MOUNT ROTARY PULSE GENERATOR
(REPLACES THE MODEL RPGD AND RPGN RESPECTIVELY)
DIMENSIONS In inches (mm)
GENERAL DESCRIPTION
The ZDH and ZNH series of sensors are heavy duty, extremely rugged,
reliable, yet compact encoders designed for harsh factory and plant floor
environments. Both models are flange mount and conform to NEMA 4, 13 and
IP66 standards. Typical applications include motion control feedback, machine
control, process control, elevator controls, conveyors, textile equipment,
robotics and food processing.
ZDH
DIMENSIONS In inches (mm)
ZNH
Open Collector Output Wiring
The ZDH and ZNH series of sensors have open collector outputs. An open
collector output brings the uncommitted collector of the encoder switching
device to the external world. Because the collector element is not associated
with the sensor supply voltage, the sensor output collector may be “pulled up”
to external voltages different than the encoder supply voltage (40 VDC
maximum). NPN open collector outputs are current sinking devices. An output
signal will not be generated unless a pull-up resistor is connected from the open-
collector to the positive side of an external supply. The same supply can be used
for powering the unit and for the pull-up resistor.
REPLACEMENT
Note: The RPGD connections are made by a 24 inch cable. The ZDH uses a 7-
Pin MS connector.

I
856 www.redlion.net
MODEL NO. PPR 2.5" Flange
Mount
PART NUMBER
2" Flange Mount
ZDH
&
ZNH
Rotary Pulse Generators 1000
60
ZNH1000H
ZNH0060H
ZDH1000H
ZDH0060H
1200
100
ZNH1200H
ZNH0100H
ZDH1200H
ZDH0100H
2500
600
2000
500
ZNH2500H
ZNH0600H
ZDH2500H
ZDH0600H
ZNH2000H
ZNH0500H
ZDH2000H
ZDH0500H
DESCRIPTION
ORDERING INFORMATION
ACCESSORIES
CCBRPG037-Pin Connector with 20 ft of 6 Wire Cable
CCBRPG
RPGFC006
RPGFC004
RPGFC003
CCBRPG027-Pin Connector with 10 ft of 6 Wire Cable
CCBRPG007-Pin Connector
Flexible Coupling (1" Length) 0.375" - 6 mm
Flexible Coupling (1.5" Length) 0.375" - 0.5"
Flexible Coupling (1" Length) 0.375" - 0.375"
RPGFC002Flexible Coupling (1" Length) 0.25" - 0.375"
RPGFC
PART NUMBERDESCRIPTIONMODEL NO.
Notes: The following list of options are available, contact the factory for details
Additional wiring configurations, including M12 connectors and flying leads
Additional output configurations, including Line Driver and Push-Pull
Additional mounting and shaft/bore sizes
Additional pulses, including 10, 120, 200, 360, 512, 1024, 1500, 1800, and 2048
When using higher resolutions, use caution and verify input specifications to
avoid frequency limitations
CE approved models available
6. MOMENT OF INERTIA: 5.2 x 10-4 oz-in-sec2(3.66 x 10-3 N-mm-sec2)
7. CONNECTOR TYPE: 7-Pin MS type connector
8. HOUSING: Black non-corrosive finish
9. MOUNTING:
ZDH: 2.0" Flange Mount
ZNH: 2.5" Flange Mount
10. WEIGHT: 11 oz. (311.8 g)
ENVIRONMENTAL CONDITIONS
1. OPERATING TEMPERATURE: 0 to +70°C
2. STORAGE TEMPERATURE: -25 to +85°C
3. HUMIDITY: 98% RH non-condensing
4. SHOCK: 75 g @ 11 msec duration
5. SEALING: NEMA 4, 13 and IP66 with shaft seal
FUNCTION PIN WIRE COLOR
+VDC ARED
COMMON BBLACK
DATA A CWHITE
DATA B DGREEN
CASE GROUND
INDEX Z
F
E
BARE WIRE
ORANGE

I
8571-717-767-6511
MODEL ZMD - MINIATURE LENGTH SENSOR
(Replaces MODEL LSM)
DESCRIPTION
Designed for light to medium duty sensing applications, the Miniature Length
Sensor, Model ZMD, is compact in size and easy-to-use.
It features a built-in spring-loaded torsion arm that provides a simple-to-
adjust torsion load, allowing the unit to be mounted in almost any orientation,
including upside down. Using a 6" or 200 mm wheel, the ZMD can be used on
almost any surface, while operating at speeds up to 3000 feet per minute. The
housing is a durable, conductive composite material that will eliminate static
build up. Whether you need to measure speed, position, or distances, the Model
ZMD is the ideal solution. For other pulse rates and/or wiring configurations,
contact the factory for further details.
Open Collector Output Wiring
The ZMD sensors have open collector outputs. An open collector output
brings the uncommitted collector of the encoder switching device to the external
world. Because the collector element is not associated with the sensor supply
voltage, the sensor output collector may be “pulled up” to external voltages
different than the encoder supply voltage (40 VDC maximum). NPN open
collector outputs are current sinking devices. An output signal will not be
generated unless a pull-up resistor is connected from the open-collector to the
positive side of an external supply. The same supply can be used for powering
the unit and for the pull-up resistor.
SAFETY SUMMARY
All safety related regulations, local codes and instructions that appear in the
literature or on equipment must be observed to ensure personal safety and to
prevent damage to either the instrument or equipment connected to it. If
equipment is used in a manner not specified by the manufacturer, the protection
provided by the equipment may be impaired.
SPECIFICATIONS
ELECTRICAL SPECIFICATIONS
1. INPUT VOLTAGE: 4.75 to 28 VDC max for temperatures up to 85ºC; 4.75
to 24 VDC for temperatures between 85ºC to 100ºC, reverse polarity
protected.
2. INPUT CURRENT: 100 mA max (65 mA typical) with no output load
3. OUTPUTS: NPN Open Collector Transistor, VOH = 40 VDC max.; 20 mA
max. current. Incremental - Two square waves in quadrature with A leading
B for clockwise rotation, as viewed from the wheel side.
4. MAX FREQUENCY: 200 KHz standard
5. NOISE IMMUNITY: Tested to BS EN61000-6-2; BS EN50081-2; BS
EN61000-4-2; BS EN61000-4-3; BS EN61000-4-6, BS EN500811
6. SYMMETRY: 180º (±18º) electrical
7. QUAD. PHASING: 90º (±22.5º) electrical
8. MIN. EDGE SEP: 67.5º electrical
9. ACCURACY: Within 0.017º mechanical or 1 arc-minute from true position.
(for PPR>189)
MECHANICAL SPECIFICATIONS
1. MAXIMUM MECHANICAL SPEED: 6000 RPM. Higher speeds may be
achievable, contact the factory.
2. SHAFT MATERIAL: Stainless Steel
3. SHAFT TOLERANCE: +0.0000/-0.0004" (+0.000/-0.010 mm)
4. RADIAL SHAFT LOAD: 5 lb. max. Rated load of 2 to 3 lb for bearing life
of 1.2 x 10 10 revolutions
5. AXIAL SHAFT LOAD: 5 lb. max. Rated load of 2 to 3 lb for bearing life of
1.2 x 10 10 revolutions
6. STARTING TORQUE: 0.05 oz-in IP50; 0.4 oz-in IP65
7. ELECTRICAL CONNECTION: 2 meter Cable, (foil and braid shield, 24
AWG conductors). Drain wire internally connected to case..
CAUTION: Read complete
instructions prior to installation
and operation of the unit.
CAUTION: Risk of electric shock.
DIMENSIONS In inches (mm)
Note: All dimensions are in inches with a tolerance of +0.005" or +0.01" unless otherwise specified.
zCOMPACT SIZE
zQUADRATURE OUTPUT
zBUILT-IN SPRING TENSIONING
zVERTICAL, HORIZONTAL, OR UPSIDE-DOWN MOUNTING
zREDUCES INSTALLATION TIME
zVARIOUS MEASURING WHEELS AVAILABLE
FUNCTION CABLE WIRE COLOR
+VDC Red
Com Black
AWhite
BGreen
Shield Bare

I
858 www.redlion.net
ORDERING INFORMATION
ACCESSORIES
DESCRIPTION PPR PART NUMBER
ZMD
250 ZMD0250B
500 ZMD0500B
Miniature Length Sensor
with Quadrature Output
2500
2000
1000
ZMD2500B
ZMD2000B
ZMD1000B
MODEL NO.
Notes: The following list of options are available, contact the factory for details
Additional wiring configurations, including M12 connectors
Additional output configurations, including Line Driver and Push-Pull
Additional pulses, including 600, 1200 and 1800
Higher resolutions are available. Use caution and verify input specifications
for frequency limitations
RPGMB002
WM0200OKKnurled (200 mm Circumference) Wheel
WI0006OKKnurled (6" Circumference) Wheel
WI0006OF
WM0200OF
Urethane (6" Circumference) Wheel
Urethane (200 mm Circumference) Wheel
Mounting Bracket
PART NUMBERDESCRIPTION
8. MOUNTING: Pivot Shaft can be mounted from either side of the housing
and is field reversible.
9. HOUSING: Stainless steel fibers in a high temperature nylon composite
10. WEIGHT: 5 oz typical
ENVIRONMENTAL SPECIFICATIONS
1. OPERATING TEMPERATURE: -20°C to 85°C
2. STORAGE TEMPERATURE: -25°C to +85°C
3. HUMIDITY: 98% RH non-condensing
4. VIBRATION: 10 g @ 58 to 500 Hz
5. SHOCK: 80 g @ 11 msec duration
6. SEALING: IP50 standard; IP65 available
DIMENSIONS In inches (mm)
MOUNTING BRACKET
This accessory angle mounting bracket allows for a
variety of mounting positions and makes installation of
the ZMD even easier.

I
8591-717-767-6511
zLOW COST LINEAR SOLUTION
z50 OR 500 PULSES PER INCH
zSTAINLESS STEEL CABLE
z0 TO 50 INCHES OF CABLE MEASUREMENT
zVARIOUS CABLE ASSEMBLIES AVAILABLE
MODEL ZLZ - LINEAR CABLE ENCODER
(Replaces MODEL LES)
DESCRIPTION
The Linear Cable Encoder can provide an accurate, yet low cost solution for
Linear Measurement applications. Common applications include robotics,
extrusion presses, valve positioning, textile machinery, and gate control
positioning, just to name a few. The ZLZ has some unique advantages over
other sensing solutions. Using a stainless steel cable, perfect parallel alignment
is no longer required and with a 50 inch cable reach, it can easily be mounted
away from harsh environments. The ZLZ is available in a quadrature output,
allowing the sensor to operate in positioning applications.
Additional cable exit configurations, pulses per inch, and mating connectors
are available on special request. Contact the factory for details.
Open Collector Output Wiring
The ZLZ sensors have open collector outputs. An open collector output
brings the uncommitted collector of the encoder switching device to the external
world. Because the collector element is not associated with the sensor supply
voltage, the sensor output collector may be “pulled up” to external voltages (40
VDC max.) different than the encoder supply voltage . NPN open collector
outputs are current sinking devices. An output signal will not be generated
unless a pull-up resistor is connected from the open-collector to the positive side
of an external supply. The same supply can be used for powering the unit and
for the pull-up resistor.
SPECIFICATIONS
ELECTRICAL SPECIFICATIONS
1. INPUT VOLTAGE: 4.75 to 28 VDC
2. INPUT CURRENT: 80 mA maximum with no output load
3. INPUT RIPPLE: 100 mV peak-to-peak at 0 to 100 KHz
4. OUTPUT: NPN open collector; 250 mA max per channel; Incremental -
square wave with channel A leading B during linear extension.
5. INDEX: Once per 5" cable extension or retraction
6. MAX FREQUENCY : 0 to 125 KHz
7. SYMMETRY: 180° (±18°) electrical
8. QUAD PHASING: 90° (±22.5°) electrical
9. RISE TIME: Less than 1 μsec
MECHANICAL SPECIFICATIONS
1. FULL STROKE LENGTH (FSL): 50" standard. Longer measuring
ranges may be available, please contact customer service
2. FINISH: Black powder coated aluminum
3. ACCURACY: ±0.10% FSL
4. REPEATABILITY: ±0.015% FSL
5. LINEAR RESOLUTION: Up to 500 cycles per inch (0.002" per cycle)
6. CABLE MATERIAL: 0.034" nylon coated stainless steel rope
7. CABLE TENSION: 20 oz maximum typical
8. LIFE (CYCLES): 1,000,000 predicted at zero angle cable exit
9. CONNECTOR TYPE: 6-Pin MS type connector
10. WEIGHT: 19 oz (538.64 g)
ENVIRONMENTAL SPECIFICATIONS
1. OPERATING TEMPERATURE: 0°C to 85°C
2. SEALING: IP65 standard
DIMENSIONS In inches (mm)
ZLZ
MOUNTING BRACKET

I
860 www.redlion.net
ORDERING INFORMATION
DESCRIPTION PART NUMBER
ZLZ Quadrature output, 50 PPI, Standard Housing ZLZ0050G
Quadrature output, 500 PPI, Standard Housing ZLZ0500G
MODEL NO.
ZLZ WIRING SPECIFICATIONS
LE PINFUNCTION CCARPG WIRE COLOR
+VDC ARED
COMMON BBLACK
DATA A CWHITE
DATA B DGREEN
NO CONNECTION E
ZLZ ELECTRICAL CONNECTIONS
ACCESSORIES
CCARPG5050' 6-Pin 4-Wire Cable/Connector
CCARPG2525' 6-Pin 4-Wire Cable/Connector
CCARPG0110' 6-Pin 4-Wire Cable/Connector
CCARPG00
LEMTBR00ZLZ Mounting Bracket
Mating 6-Pin MS Connector
CCARPG
PART NUMBERDESCRIPTIONMODEL NO.

I
8611-717-767-6511
ORETROREFLECTIVE, PROXIMITY (DIFFUSE) & OPPOSED BEAM
PAIRS
OMODULATED LED LIGHT BEAMS FOR IMMUNITY TO AMBIENT
LIGHT
O+10 to +30 VDC OPERATION WITH REVERSE POLARITY
PROTECTION
ONPN & PNP (CURRENT SINKING AND SOURCING ) OUTPUTS
ORUGGED VALOX HOUSING MEETS NEMA 1, 2, 3, 3S, 4, 4X, 12,
& 13 STANDARDS
OLED SIGNAL STRENGTH INDICATOR MAKES ALIGNMENT EASY
& PROVIDES INDICATION OF LIGHT SIGNAL DETERIORATION
DESCRIPTION
These compact self-contained and powerful Retroreflective, Proximity
(Diffuse) and Opposed Beam Pair Photo-electric Sensors provide application
flexibility in counting, positioning and object detection. All units are
interchangeable with conventional 18 mm threaded barrel-type photo-electrics
and inductive proximity sensors. Their small 2-1/8" x 1-1/4" x 1/2" size, in
addition to various mounting options, greatly increases alignment ease and
application possibilities.
All units can be powered from +10 to +30 VDC and are reverse polarity
protected. Current sinking NPN and current sourcing PNP Open Collector
Transistors are protected from continuous overload and inductive load transients
and are rated to 150 mA, with low saturation voltage and less than 1 μA offstate
leakage current. In addition, no false outputs are generated at power-up. A 6 foot
long 4 conductor PVC jacketed cable with strain relief provides supply input
and transistor outputs.
A gasketed removable back cover provides access to the LIGHT/DARK
Operate Mode Selector. When in the “Light Operate” (LO) position, outputs
turn on when light is received by the detector. When in the “Dark Operate”
(DO) position, the outputs are turned on when sensor light is not detected. Also
accessible is a 15-turn screwdriver adjustable GAIN potentiometer that enables
precise adjustment of system sensitivity. A rear mounted LED Signal Strength
Indicator “lights” whenever the sensor sees a light condition and “blinks” at a
rate proportional to the received signals strength (the stronger the signal, the
faster the rate). This LED allows for easy alignment and monitoring of signal
strength deterioration due to dirty optics or changes in alignment.
SPECIFICATIONS
1. POWER REQUIREMENTS: +10 to +30 VDC, 10% Ripple Max., Reverse
Polarity Protected, 25 mA max. (Model EMDC = 20 mA max.)
2. OUTPUTS: Current Sinking NPN and Current Sourcing PNP Open
Collector Transistors; Short Circuit Protected to +30 VDC, Internal Zener
Diode Protected;
ISNK = 150 mA each; VOH = 30 VDC max.
NPN VSAT = 0.2 V @ 10 mA load; 1 V max. @ 150 mA max. load
PNP VSAT = Less than 1 V @ 10 mA load; less than 2 V @ 150 mA max.
load
Offstate Leakage Current = Less than 1 μA
3. RESPONSE TIME: Responds to a “light” or “dark” signal duration of 1
msec. or greater.
4. OPERATING TEMPERATURE: -4° to+158°F (-20° to +70°C)
5. WEIGHT: 3.5 oz (99.2 g)
MOUNTING
Various mounting methods have been designed to simplify alignment and
provide versatility in any industrial environment. The integral 18 mm threaded
lense can be interchanged with existing threaded entries common to 18 mm
barrel sensors and inductive proximity switches. The threaded lense can also be
installed into panel thicknesses of 5/16" through a 0.71" diameter hole and
tightened into place with the supplied mounting nut. Two #4 screw clearance
through-holes on 0.95" centers are available for side mounting or side nesting
of multiple units on 1/2" centers for scanning large areas or for code reading
applications. Units may also be mounted using the stainless steel Bottom-Mount
or Side-Mount Bracket Kits (Models MB2 or MB3). These brackets allow 2
axes of movement & greatly simplify alignment.
MODEL RRDC - RETROREFLECTIVE SENSOR
The Model RRDC is a compact, DC powered, retroreflective photo-electric
sensor with maximum detection range of 15 feet (with 3" dia. reflector Model
RT2). The “visible” LED light beam allows for easy alignment and is modulated,
providing immunity to ambient light. The small beam size of 1/2" at 1 foot from
the lense, makes it a good choice for detecting relatively small objects.
In operation, the visible LED light beam is directed at a prismatic photo
transistor, amplified and demodulated. An object which then breaks this beam
will trigger the outputs.
ALIGNMENT
Apply DC power to the RRDC and direct its visible light beam at a reflective
target (Models RT1 or RT2) while observing the Signal Strength LED on the
back of the unit. Optimum alignment occurs when the sensor is receiving the
maximum amount of reflected light and the GAIN (sensitivity) potentiometer is
adjusted for the highest pulse rate on the Signal Strength LED. Note that glass,
metallic objects, and other highly reflective surfaces may not be detected. In
these applications, mount the sensor and reflector at any angle to the object to
minimize direct reflections.
COMPACT DC POWERED PHOTO-ELECTRIC SENSORS

I
862 www.redlion.net
MODEL PRDC - PROXIMITY SENSOR
The Model PRDC is a compact, DC powered, Proximity (Diffuse) photo-
electric sensor with a 12" maximum detecting distance (as measured with a
90% reflective white test card). This sensor requires no special reflectors or
reflective tapes and the limited 12" sensing range reduces detection of
background reflections. It is ideally suited for detection of transparent or
translucent objects, parts ejected from presses, and rotating targets such as
pulley spokes. A modulated “infrared” LED light beam provides immunity to
ambient light.
In operation, the modulated light beam is reflected by the object to be
detected. Actual sensing range is determined by the surface area and the
amount of reflectivity of the object. This reflected light is sensed by a photo-
transistor, amplified, demodulated and then energizes the outputs.
ALIGNMENT
With the PRDC in its sensing position, apply DC Power and direct the
infrared light beam at the object to be detected. While observing the Signal
Strength LED, adjust the GAIN (sensitivity) potentiometer for the highest LED
pulse rate. Now remove the sensed object. If the LED goes out, no further
adjustment is necessary. If the LED remains lit, the sensor is “seeing” reflected
light from the background. Reduce the GAIN by steps until the sensor “sees”
the object but not the background. Then turn the pot counter clockwise 2 more
full turns. If the background is still being sensed, it will be necessary to reduce
its reflectivity by either moving it back or painting it flat black.
MODELS EMDC & RCDC - OPPOSED BEAM
EMITTER/ RECEIVER SENSOR PAIR
The Models EMDC (Emitter) and the RCDC (Receiver) are compact, DC
powered, Opposed Beam photo-electric sensor pairs with a 10 foot sensing
range. The Emitter contains a high power modulated “infrared” LED. The
Receiver contains a sensitive photo-transistor, amplifier-demodulator and
output transistors. In operation, these outputs will be triggered when the
Receiver detects that an object begins to break the Emitter beam. Due to their
high gain, they are ideally suited for detecting opaque objects in dirty and dusty
areas or when condensation or oil film environments are present. The small
1/8" well defined beam size allows for sensing small parts accurately and
provides repeatable edge sensing of opaque objects to better than 0.01" for
accurate positioning applications. Greater accuracies can be achieved by
aperturing the Emitter, Receiver or both. However, aperturing will result in
reduced sensing distances. While the beam size is small, the Receiver has a
wide field of view which allows easy “line-of-sight” alignment.
ALIGNMENT
Temporarily mount the Emitter-Receiver Pair opposite, and in line-of-sight,
to each other. Apply DC power to both and aim the Emitter at the Receiver.
Move the Receiver up-down-left-right until the Signal Strength LED lights.
Optimum alignment occurs when the Signal Strength LED flashes at the
highest rate obtainable with the GAIN (Sensitivity) potentiometer adjusted to
the lowest setting needed to light the LED. Mount the units in place. Opposed
Beam Pairs should be used at their highest possible gain. Therefore, have the
object to be detected in “sensing position” and adjust the GAIN potentiometer
fully clockwise (maximum gain). If the Signal Strength LED comes on, “burn-
through” is occurring, and will require that the GAIN pot be backed off
(counter clockwise) until the LED goes out and then backed off 2 more full
turns. Note that Opposed Beam Pairs must be aligned properly and mounted
securely. Excessive movement or vibration can cause loss of alignment and
intermittent or false operation.
MB2 BOTTOM MOUNT BRACKET KIT INSTALLATION
1. Remove lense mounting nut on sensor and bottom lense screw.
2. Align mounting foot A under lense as shown with threaded insert facing
down and attach to lense with long kit supplied screw B .
3. Place sensor mounting peg into bracket hole.
4. Install screw, with washers, into long slotted bracket hole and into
mounting foot threaded insert.
MB3 SIDE MOUNT BRACKET KIT INSTALLATION
1. Remove lense mounting nut from sensor.
2. Install screws with flat washers, through side clearance holes in sensor
and through top hole and slot of bracket.
3. Install lockwashers and tighten hex nuts.

I
8631-717-767-6511
MOUNTING OPTIONS
MB3 SIDE MOUNTING BRACKET MB2 BOTTOM MOUNTING BRACKET
TYPICAL HOOKUP

I
864 www.redlion.net
DIMENSION DRAWINGS
FRONT REAR
VIEW VIEW
SIDE
VIEW
ORDERING INFORMATION
EMDC HOOKUP
1. GAIN (sensitivity) control: rotate clockwise to increase gain.
2. “SIGNAL STRENGTH” LED indicator pulse at a rate proportional to received light signal
strength.
3. LIGHT/DARK OPERATE SELECT control: DARK OPERATE = fully counter clockwise;
LIGHT OPERATE = fully clockwise.
4. 6´ PVC-jacketed 4-wire cable supplied (2-wire, EMDC).
MODEL NO. DESCRIPTION PART NUMBERS
RRDC Retroreflective DC Photo-Electric Sensor RRDC0000
PRDC Proximity (Diffuse) DC Photo-Electric Sensor PRDC0000
EMDC DC Emitter (Opposed Beam Pair) EMDC0000
RCDC DC Receiver (Opposed Beam Pair) RCDC0000
MB2 Bottom Mount Bracket Kit MB200000
MB3 Side Mount Bracket Kit MB300000
RT1 1-1/2" Dia. Prismatic Reflector (Model RRDC) RT100000
RT2 3" Dia. Prismatic Reflector (Model RRDC) RT200000

I
8651-717-767-6511
GENERAL DESCRIPTION
These miniature self-contained and powerful Retroreflective, Proximity
(Diffuse) and Opposed Beam Pair Photo-electric Sensors provide application
flexibility in counting, positioning and object detection. All units are
interchangeable with conventional 12 mm threaded barrel-type photo-electrics
and inductive proximity sensors. Their small size, in addition to various
mounting options, greatly increases alignment ease and application
possibilities.
All units can be powered by supplies ranging from +10 to +30 VDC and are
reverse polarity protected. The complementary NPN open collector (Current
Sinking) outputs are protected from continuous overload and inductive load
transients and are rated to 150 mA, with low saturation voltage and less than
10 μA off-state leakage current. In addition, no false outputs are generated at
power-up. Two versions of the sensor are available, a 6 foot (1.83 M) long 4
conductor PVC jacketed cable or 6 inch long quick disconnect Pico-style
connector provides supply input and transistor output.
These miniature sensors offer a digital gain adjustment that uses a single
sealed push button to streamline installation and setup. The user simply holds
the button in to achieve maximum sensitivity, and then can click the button for
seven decremental settings to fine tune for your application. They also feature
smart new status indicators. Green and amber LED’s display operating status
from three directions, indicate “power on” and “light sensed” and flash to
signal “maximum gain,” “gain reduced one increment” and “minimum gain”
conditions. You can tell operating status of your sensors at a glance.
MODEL RRMDC - RETROREFLECTIVE SENSOR
The Model RRMDC is a miniature, DC powered, retroreflective photo-
electric sensor with maximum detection range of 6.5 feet [1.98 M] (with 3" dia.
reflector Model RT2). The “visible” LED light beam allows for easy alignment
and is modulated, providing immunity to ambient light. The small beam size
makes it a good choice for detecting relatively small objects.
In operation, the visible LED light beam is directed at a photo transistor,
amplified and demodulated. An object which then breaks this beam will trigger
the output.
MODEL PRMDC - PROXIMITY SENSOR
The Model PRMDC is a miniature, DC powered, Proximity (Diffuse)
photo-electric sensor with a 8" maximum detecting distance. This sensor
requires no special reflectors or reflective tapes and the limited 8" sensing
range reduces detection of background reflections. It is ideally suited for
detection of transparent or translucent objects, parts ejected from presses, and
rotating targets such as pulley spokes. A modulated “infrared” LED light beam
provides immunity to ambient light.
In operation, the modulated light beam is reflected by the object to be
detected. Actual sensing range is determined by the surface area and the
amount of reflectivity of the object. This reflected light is sensed by a photo-
transistor, amplified, demodulated and then energizes the outputs.
MODELS EMMDC & RCMDC - OPPOSED BEAM
EMITTER/ RECEIVER SENSOR PAIR
The Models EMMDC (Emitter) and the RCMDC (Receiver) are miniature,
DC powered, Opposed Beam photo-electric sensor pairs with a 13 foot sensing
range. The Emitter contains a high power modulated “infrared” LED. The
Receiver contains a sensitive photo-transistor, amplifier-demodulator and
output transistor. In operation, this output will be triggered when the Receiver
detects that an object begins to break the Emitter beam. Due to their high gain,
they are ideally suited for detecting opaque objects in dirty and dusty areas or
when condensation or oil film environments are present.
MODELS PRM & RRM – MINIATURE DC POWERED PHOTO-ELECTRIC SENSOR
ORETROREFLECTIVE, PROXIMITY (DIFFUSE) & OPPOSED
BEAM PAIRS
O+10 to +30 VDC OPERATION WITH REVERSE POLARITY
PROTECTION
OCOMPLEMENTARY NPN (CURRENT SINKING) OUTPUTS
ODURABLE BLACK POLYCARBONATE/ABS ALLOY HOUSING
MEETS NEMA 6 AND IP65 STANDARDS
OLED’s DISPLAY OPERATING STATUS
OPUSH BUTTON DIGITAL GAIN ADJUSTMENT

I
866 www.redlion.net
DIMENSIONS In inches (mm)
SIDE VIEW
FRONT VIEW REAR VIEW
SPECIFICATIONS
1. POWER REQUIREMENTS: +10 to +30 VDC (10% Ripple Max.)
Current Draw: 25 mA max. (exclusive of load)
Reverse Polarity Protected
2. REPEATABILITY: Opposed Mode: 1 msec, All others: 175 μsec.
3. OUTPUTS: Current Sinking Complementary NPN Open Collector
Transistor; Short Circuit Protected
ISNK: 150 mA max. each; VOH = 30 VDC max.
VSAT: 1 V @ 10 mA load
Offstate Leakage Current : Less than 10 μA @ 30 VDC
4. OUTPUT RESPONSE TIME: Opposed Mode: 8 msec ON, 4 msec
OFF, All others 1.5 msec
5. OPERATING TEMPERATURE: -4° to+131°F (-20° to +55°C)
6. WEIGHT: 0.4 oz. (1.13 g)
ORDERING INFORMATION
SET-UP AND INSTALLATION
USING THE PHOTOELECTRIC
LED INDICATORS
The photoelectric has two bright LEDs; both are visible from the back, and
each is visible from one side of the sensor. They indicate the following:
Green steady: Power ON
Amber steady: Light sensed
Green flashing rapidly 5 times: Maximum gain
Single green flash: Push button “click” registered, gain reduced by one
increment
Amber/Green alternating: Minimum gain (can not reduce further)
SETTING SENSITIVITY
The unit features an extremely simple method for setting sensitivity (gain).
Simply hold the push button until the LED flashes rapidly, 5 times. The
sensor is automatically set to maximum gain.
Reduce gain by pressing the push button briefly (“clicking” it) up to 7 times;
gain will reduce in single increments with each click. Amber and green LEDs
alternate after the lowest setting is reached.
If the gain is accidentally set too low, hold the push button until gain
increases to the maximum level, then click the push button down to the
approrpriate level. Gain may be readjusted in this way at any time.
Pico-Style Quick Disconnect Connector & Cable, 2 metersCCMPE
MODEL NO. DESCRIPTION PART NUMBERS
w/ 2 Meter Cable w/ Pico Connector
RRMDC Retroreflective DC Photo-Electric Sensor RRMDC000 RRMDC001
CCMPE000
PRMDC Proximity (Diffuse) DC Photo-Electric Sensor PRMDC000 PRMDC001
EMMDC DC Emitter (Opposed Beam Pair) EMMDC000 EMMDC001
RCMDC DC Receiver (Opposed Beam Pair) RCMDC000 RCMDC001
MB2 Bottom Mount Bracket Kit MBM20000
MB3 Side Mount Bracket Kit MBM30000
RT1 1-1/2" Dia. Prismatic Reflector (Model RRMDC) RT100000
RT2 3" Dia. Prismatic Reflector (Model RRMDC) RT200000

I
8671-717-767-6511
MOUNTING
Various mounting methods have been designed to simplify alignment and
provide versatility in any industrial environment. The integral 12 mm
threaded lense can be interchanged with existing threaded entries common to
12 mm barrel sensors and inductive proximity switches. The threaded lense
can also be installed into panel thicknesses of 3/16" through a 0.51" diameter
hole and tightened into place with the supplied mounting nut. Two #4 screw
clearance through-holes on 0.55" centers are available for side mounting or
side nesting of multiple units on 1/2" centers for scanning large areas or for
code reading applications. Units may also be mounted using the stainless steel
Bottom-Mount or Side-Mount Bracket Kits (Models MBM2 or MBM3).
These brackets allow 2 axes of movement & greatly simplify alignment.
CCMPE WIRE OPTIONS
MBM3 MBM2
WIRING DIAGRAM
4-PIN FEMALE PICO-STYLE CONNECTOR [ 6.5' (2 m) ] 4-PIN MALE PICO-STYLE CONNECTOR

I
868 www.redlion.net
OCOMPACT STAINLESS STEEL HOUSING
OM12 QUICK DISCONNECT
OEXCELLENT EMC RESISTANCE
OSHORT CIRCUIT AND REVERSE POLARITY PROTECTION
OIP67 PROTECTION RATING
OCERAMIC TECHNOLOGY THAT PROVIDES LONG TERM
RELIABLE OPERATION
DESCRIPTION
The PT Series Pressure Transmitters are designed to provide accurate and
dependable pressure measurement, even in the most demanding applications.
The reliability of solid-state design and the durability of the stainless steel case
are the cornerstone of their design.
Proven ceramic component technology allows long-term stability and high
tolerance to overpressure conditions. The 4 to 20 mA output can easily be
connect to any Red Lion process meter for monitoring and/or control. Short
circuit and reverse polarity protection are built-in to the circuitry, further
enhancing this pressure transmitters.
The transmitter housing is constructed of stainless steel and provides an IP 67
level of protection. The fluid connection is a standard G ¼ thread, while the
electrical connection is a M12 connector.
Additional pressure ranges and accessories are available on special request,
contact the factory for more details.
SAFETY
All safety related regulations, local codes and instructions that appear in the
manual or on equipment must be observed to ensure personal safety and to
prevent damage to either the instrument or equipment connected to it. If
equipment is used in a manner not specified by the manufacturer, the protection
provided by the equipment may be impaired.
SPECIFICATIONS
1. ACCURACY: ≤0.3% Full Scale
2. MEDIUM TEMPERATURE: -40°F to + 302°F (-40°C to +150°C)
3. OPERATING VOLTAGE: 8 to 33 VDC
4. OUTPUT: 4 to 20 mA
5. CURRENT CONSUMPTION: ≤20 mA
6. DYNAMIC RESPONSE: <2 msec
7. SHORT CIRCUIT PROTECTION: Yes
8. REVERSE POLARITY PROTECTION: Yes
9. DEGREE OF PROTECTION: IP 67
10. HOUSING MATERIAL: SST 1.4305 (AISI 303)
11. ELECTRICAL CONNECTION: M12x1
12. FLUID CONNECTION: G ¼
13. SHOCK RESISTANCE: 75 G, 11 msec per IEC 68-2-27
14. VIBRATION RESISTANCE: 20 G, 15 mm per IEC 68-2-6
MODEL PT - PRESSURE TRANSMITTER
DIMENSIONS In inches (mm)
CAUTION: Read complete instructions prior to
installation and operation of the unit.
PT PIN WIRE COLORFUNCTION
1 BROWN+VDC
3BLUE4-20 mA OUT
4—
N/C
MODEL NO. PSIBARDESCRIPTION PART NUMBER
PT
0 - 14.50 - 1
2 Wire Relative
Pressure
Transmitter
PT00001R
0 - 23.20 - 1.6 PT00002R
0 - 1450 - 10 PT00010R
0 - 36250 - 250 PT00250R
CCM 4 Wire unshielded 2 meter cable/connector CCM12U02
ORDERING INFORMATION
WIRING PINOUT AND SPECIFICATIONS
DISPLAY DEVICE
VDC SOURCE
EXTERNAL
VDC SOURCE

I
8691-717-767-6511
OTHERMOCOUPLE OR RTD
O24" PROBE CUTTABLE TO 3.5"
OMEASURE TEMPERATURES UP TO 704 °C/1300 °F
OMOUNTING AND WIRING ACCESSORIES
MODEL TMP - FIELD CUTTABLE TEMPERATURE SENSOR PROBES
AND ACCESSORIES
GENERAL DESCRIPTION
Model TMP Thermocouple and RTD Temperature Probes are field cuttable to
the desired length. The probes can be trimmed to within 3.5" (88.9 mm) of the
probe tip allowing for greater application flexibility. Accessory hardware is
available to wire and mount the probes in the user's existing thermowell.
Optional spring loaded fittings (sold separately) slide along the probe sheath
to proper immersion depth as determined by the user. These fittings allow for
strong contact between the probe and the thermowell to improve response.
SPECIFICATIONS
1. THERMOCOUPLE: Ungrounded J, K, T and E calibration available.
2. RTD: 3 Wire, 100W, Class "A" DIN Platinum per IEC751 (385 ALPHA)
3. PROBE SHEATH: 0.25" (6.35mm)
4. PROBE LENGTH: 24" (0.6M) as supplied, can be field cut down to 3.5"
(88.9mm).
5. LEAD WIRE: 6" (152.4mm) 24 gauge
6. WIRE INSULATION: Neoflon PFA, Fiberglass or High Temperature Glass.
As specified by part number.
CUTTING THE TUBING
The thermocouple and RTD probes have a crimp mark located 3" (76.2 mm)
from the tip. This indicates the end of the internal seal. Damage to the probe will
occur if trimmed within 3.5" (88.9 mm) of the tip.
1. Determine the desired probe length and mark it with a pen or marker. Secure the
probe within a tube vice being careful not to deform or flatten the probe.
2. “Score” the tubing with a tubing cutter. Make one or two revolutions with the
cutter. Do not cut completely through the tubing to prevent burrs or a sharp
lip on the inside of the tubing.
3. Use a pair of pliers to grasp the excess tubing to be removed.
4. Use a narrow range of motion to slowly work the excess tubing from side to
side until it separates from the probe. Using a wide range of motion will
deform the tube and prevent installation of the tube sleeve.
5. Remove the excess tubing and trim the leads to the desired length.
6. Install the tube sleeve in the open end of the tube to protect the leads from any
sharp edges on the inside of the tube.
INSTALLATION
1. Orient the probe and the spring loaded fitting as shown below.
2. Screw the spring loaded fitting one complete turn into the thermowell (not
included).
3. Push the probe into the fitting until it touches the bottom of the thermowell.
4. Hold the probe to the bottom of the thermowell and tighten the fitting. This
ensures good contact between the probe and the bottom of the thermowell.
5. Completely tighten the fitting into the thermowell.
Note: The probe must be inserted only as shown below to prevent damage to
the fitting.
If it becomes necessary to separate the probe and the fitting, first disconnect
the wires and then unscrew the fitting completely from the thermowell. Pull the
probe through the fitting from the end that was screwed into the thermowell. The
fitting will present resistance to the probe removal if you attempt to go in the
wrong direction.
TMPXXXXX TMPACC01
(One tube sleeve is included with each probe.)
TYPEMODEL NO. DESCRIPTION WIRE
COLOR WIRE INSULATION TEMPERATURE RANGE PART
NUMBER
J
K
T
E
White (+)
Red (-)
Neoflon PFA 0 to 260 °C / 32 to 500 °F TMPJ2SU1
385
Fiberglass 0 to 370 °C / 32 to 700 °F TMPJ2SU2
High Temp Glass 0 to 370 °C / 32 to 700 °F TMPJ2SU3
Yellow (+)
Red (-)
Neoflon PFA -200 to 260 °C / -328 to 500 °F TMPK2SU1
Fiberglass -200 to 482 °C / -328 to 900 °F TMPK2SU2
TMP
High Temp Glass -200 to 704 °C / -328 to 1300 °F TMPK2SU3
TC Probe
Blue (+)
Red (-) Neoflon PFA -200 to 200 °C / -328 to 400 °F TMPT2SU1
Violet (+)
Red (-)
Neoflon PFA -200 to 260 °C / -328 to 500 °F TMPE2SU1
Fiberglass -200 to 430 °C / -328 to 800 °F TMPE2SU2
High Temp Glass -200 to 430 °C / -328 to 800 °F TMPE2SU3
RTD Probe ** Neoflon PFA -200 to 260 °C / -328 to 500 °F TMPA2S01
Fiberglass -200 to 600 °C / -328 to 1112 °F TMPA2S02
ORDERING INFORMATION
** RTDs do not have color standard. Excitation and Signal+ are the same color. Signal common is the odd color.

I
870 www.redlion.net
ACCESSORIES (All accessories are sold separately)
Weatherproof Heads:
Cast Aluminum
Protects against dust, rain, splashing,
and hose directed water
Weatherproof gasket
Stainless steel chain
Terminal Blocks
2-Terminal for use with TCs 4-Terminal for use with RTDs
Spring Loaded Fittings: Connects
probe to thermowell and attaches
to weatherhead 1/2" NPT X1/2"
NPT Stainless Steel.
Tube Sleeve
Tube sleeve to protect probe leads
from burrs after cutting probe.
MODEL NO. DESCRIPTION PART NUMBER
Spring Loaded Fitting TMPACC01
Cast Aluminum Weatherproof Head TMPACC02
TMPACC Spare Tube Sleeve TMPACC03
2-Terminal Block (for TCs) TMPACC04
4-Terminal Block (for RTDs) TMPACC05
TMPACC02
TMPACC04 TMPACC05
TMPACC01
TMPACC03
ACCESSORIES (sold separately)

I
8711-717-767-6511
MODELS TMPC, TMPU, & TMPB THERMOCOUPLES
MODEL TMPC - HIGH TEMPERATURE THERMOCOUPLE
GENERAL DESCRIPTION
The model TMPC thermocouple is double-protected with abrasion resistant
Inconel overbraid with high temperature ceramic fiber insulation. A temperature
rating of up to 980º C (1800º F) continuous service and 1090º C (2000º F) short-
term service makes these probes ideal for many high temperature measurement
applications. Ideal applications include profiling ovens and furnaces.
zFlexible and Abrasion Resistant
zSmooth, rounded tip on “hot” side
zMale high temperature standard size ceramic connector on “cold”
side
SPECIFICATIONS
1. WIRE: 20 AWG, 10 feet in length; standard limits of error
2. INSULATION: Nextel®ceramic fiber. (Not to be exported)
3. TEMPERATURE: 980 ºC (1800 ºF) continuous
1090 ºC (2000 ºF) short-term service depending on TC type
4. CONNECTOR: High temperature ceramic standard size style connector -29
to 650 ºC (-20 to 1200 ºF)
5. PROBE: Grounded TC junction with Inconel overbraid welded to form a
smooth, round tip
ORDERING INFORMATION
MODEL NO. DESCRIPTION PART NUMBER
TMPC Type K OVERBRAIDED CERAMIC TC TMPKCF01
3/16
(4.8)
10.0 (254.0)
0.10 DIA.
(2.5)
0.5
(12.7)
0.16
(4.1)
0.19
(4.8)
0.44
(11.2)
1.00 (25.4)
1.50
(38.1)
0.59
(15)
0.63
(16)
DIMENSIONS In inches (mm)
TMPC TMPU
TMPB
* Nextel can not be exported. Consult factory for available options.

I
872 www.redlion.net
TMPU
MODEL TMPU - UTILITY THERMOCOUPLES
GENERAL DESCRIPTION
Utility thermocouple probes are basic products for temperature measurement.
They are typically connected to a hand held thermometer. The unit features a
rugged handle that is permanently molded to a probe sheath. A retractable cable
is connected with strain relief to the handle end, and termination is provided by
a miniature male connector.
zRETRACTABLE CABLE WITH SUPERIOR MEMORY
zMINIATURE CONNECTOR FOR USE WITH HAND HELD
THERMOMETERS
zMOLDED HANDLE RATED TO 220º C (425º F)
zMEETS OR EXCEEDS SLE AND EN 60584-2: TOLERANCE
CLASS 1
SPECIFICATIONS
1. HANDLE TEMPERATURE RATING: 220º C (425º F)
2. THERMOCOUPLE JUNCTION: Grounded
3. CABLE LENGTH: 1 foot expands to 5 feet
4. PROBE LENGTH: 12 inches
5. MAX PROBE TEMPERATURE:
304SS: 900 °C (1650 °F)
Inconel: 1150 °C (2100 °F)
ORDERING INFORMATION
MODEL TMPB - SPRING LOADED COMPRESSION FITTING THERMOCOUPLE
GENERAL DESCRIPTION
The spring-loaded compression fitting thermocouple is ideally suited for
measuring plastic processing machinery temperatures at the crosshead, die or
barrel. It has a 5 foot stainless steel cable, with a 3/16" sheath diameter and a
brass compression fitting with 1/8" NPT.
zIDEAL FOR EXTRUDERS/MOLDING AND MACHINE PROCESS
TEMPERATURE
zCOLD END TERMINATION IS HIGH TEMPERATURE NICKEL
ZINC FERRITE CORE STANDARD MALE CONNECTOR
zSTANDARD MALE CONNECTOR IS DESIGNED FOR
SUPPRESSION OF ELECTROMAGNETIC INTERFERENCE
SPECIFICATIONS
1. THERMOCOUPLE JUNCTION: Type K, grounded
2. CABLE: 5 feet, 0.188 dia. stainless steel
3. CONNECTOR SPECIFICATIONS: Extra heavy duty solid male pin male
connector
Case Material: High temperature liquid crystal polymer (LCP)
Temperature ratings:
Ferrite core effectiveness: 120º C (248º F)
LCP Material: 260º C (500º F)
Impedance: (±20%): 35 ohms @ 25 MHz
70 ohms @ 100 MHz
ORDERING INFORMATION
MODEL NUMBER DESCRIPTION TC ANSI TYPE SHEATH MATERIAL SHEATH DIAMETER CABLE LENGTH TC JUNCTION PART NUMBER
TC HANDLE
PROBE K304 SS .125 1' EXPANDS TO 5' GROUNDED TMPKUT01
TMPU
TC HANDLE
PROBE KINCONEL 600 .125 1' EXPANDS TO 5' GROUNDED TMPKUT02
MODEL NUMBER DESCRIPTION PART NUMBER
TMPB COMPRESSION TC ASSEMBLY TMPKBT01
60
(1524)
2
(50)
(47.8)
(2.5)
0.16 (3.96)
0.19 (4.77)
0.44 (11.11)
(25.4)
(12.7)
0.10 DIA.
0.47 (11.9)
1.00
0.59 (15.06)
1.88
0.50
OMEGA
+ -
DIMENSIONS In inches (mm)
(16.0)
0.63
(137)
5.38 (305)
12.0
(22.4)
0.88
DIMENSIONS In inches (mm)
* For connector information see TMPCNM01 on page 875.

I
8731-717-767-6511
QUICK DISCONNECT TEMPERATURE PROBES AND ACCESSORIES
GENERAL DESCRIPTION
Model TMP Quick Disconnect Thermocouples are available with both
miniature and standard size connector termination. These rugged probes feature
a variety of calibration types, sheath materials and diameters, and are available
with an ungrounded junction. A high temperature probe is also available that can
be mated with a standard female universal connector. All temperature probes are
rated at the tolerance standard SLE, (Special Limits Of Error), which is ±2° C
degrees of error.
SPECIFICATIONS
1. SHEATH: Constructed of 304 stainless steel, Inconel 600, or XL (High
Temperature Probe only)
2. SHEATH DIAMETER: 0.062" or 0.125"
3. PROBE LENGTH: 12" Ungrounded junction.
4. CONNECTOR BODY: Glass Filled Nylon, rated to 220º C.
5. WIRE: Sold separately, see accessory details
ORDERING INFORMATION
0.062 Dia.
0.125 Dia.
12 (300)
12 (300)
DIMENSIONS In inches (mm)
zMATING FEMALE CONNECTOR (with "write on label") AND PLCM
CABLE CLAMP WITH LOCKING CLIP INCLUDED WITH
MINIATURE AND STANDARD SIZE PROBES
zCHOICE OF 304 SS, INCONEL 600 OR XL SHEATH
zXL HIGH TEMPERATURE PROBE AVAILABLE
zMEETS OR EXCEEDS SLE AND EN 60584-2: TOLERANCE
CLASS 1
zCOLOR CODED CONNECTOR BODY
zWIRE SOLD SEPARATELY
DESCRIPTION SHEATH MATERIAL
SHEATH
DIAMETER
INCHES
PART NUMBER
J0.062 TMPJQD01
K304SS 0.062 TMPKQD01
T304SS 0.062 TMPTQD01
E304SS 0.062 TMPEQD01
JINCONEL 600 0.062 TMPJQD02
KINCONEL 600 0.062 TMPKQD02
TINCONEL 600 0.062 TMPTQD02
EINCONEL 600 0.062 TMPEQD02
STANDARD
QUICK
DISCONNNECT
TC PROBE
W/ MOLDED
CONN
J304SS 0.125 TMPJQD03
K304SS 0.125 TMPKQD03
T304SS 0.125 TMPTQD03
E304SS 0.125 TMPEQD03
JINCONEL 600 0.125 TMPJQD04
KINCONEL 600 0.125 TMPKQD04
TINCONEL 600 0.125 TMPTQD04
EINCONEL 600 0.125 TMPEQD04
KXL 0.125 *TMPKQD05
ANSI
TYPE
TC
304SS
MINI
QUICK
DISCONNNECT
TC PROBE
W/ MOLDED
CONN
* XL probes have a very low drift and are for use in high temperature
applications up to 1335° C.
MODEL TMP - QUICK DISCONNECT TEMPERATURE PROBES

I
874 www.redlion.net
MODEL TMWS - THERMOCOUPLE WIRE
GENERAL DESCRIPTION
Thermocouple wire is for use with the Mini and Standard Quick Disconnect
Temperature Probes. It is available in a variety of insulation and calibration
types, and spool lengths.
SPECIFICATIONS
1. WIRE LENGTH: 25 or 100 Foot Spools
2. INSULATION: Duplex Insulated
3. TYPE: 24 AWG Solid Wire
4. COLOR CODE: ANSI color codes
ORDERING INFORMATION
GENERAL DESCRIPTION
The retractable sensor cables are color coded and for use with thermocouples.
The cables have a superior jacket construction, employing the latest in jacketing
material: TPE (thermoplastic elastomer), a unique family of thermoplastics
which exhibits characteristics previously found only in rubber compounds. TPE
is extremely tough and flexible, and has excellent abrasion resistance. This
special construction technique yields an expansion rate of up to 500%. These
retractable cables are for use with electronic type indicators, either panel,
handheld or bench type models.
zCOMPATIBLE WITH J, K, T AND E THERMOCOUPLE
CALIBRATIONS
zEXPANSION RATIO UP TO 500% - 1 Ft (300 mm) OF CABLE
STRETCHES TO 5 Ft (1500 mm)
zIDEAL FOR USE WITH HANDHELD AND BENCH STAND
ELECTRONIC INDICATORS
zBARE WIRE ENDS
SPECIFICATIONS
1. INSULATION: TPE Thermoplastic Elastomer outer jacket
2. INNER CONDUCTORS: Neoflon PFA
3. CALIBRATIONS: J, K, T, E
4. THERMOCOUPLE WIRE CONFORMITY: SLE Standard limit of error
per ANSI MC 96.1 (1975)
5. TEMPERATURE RATING: -30 to 105ºC (-22 to 220º F)
6. CONSTRUCTION: 28 AWG stranded wire (7 strand x 36 gauge)
7. LENGTH: 2 feet (600 mm)
ORDERING INFORMATION
WIRING
ANSI TYPE POSITIVE NEGATIVE JACKET
JWHITE RED BROWN
KYELLOW RED BROWN
TBLUE RED BROWN
E PURPLE RED BROWN
DESCRIPTION
MAX
TEMP INSULATION TYPE NOMINAL
SIZE (IN.)
PART
NUMBER
ºC ºF
WIRE
100' SPL
J260 500 NEOFLON PFA .056 X .093 TMWSJ100
K260 500 NEOFLON PFA .056 X .093 TMWSK100
T200 400 NEOFLON PFA .056 X .092 TMWST100
E260 500 NEOFLON PFA .056 X .092 TMWSE100
J370 700 GLASS BRAID .050 X .085 TMWGJ100
K482 900 GLASS BRAID .050 X .080 TMWGK100
T200 400 GLASS BRAID .050 X .080 TMWGT100
E430 800 GLASS BRAID .050 X .080 TMWGE100
WIRE
25' SPL
J260 500 NEOFLON PFA .056 X .093 TMWSJ025
K260 500 NEOFLON PFA .056 X .093 TMWSK025
T200 400 NEOFLON PFA .056 X .092 TMWST025
E260 500 NEOFLON PFA .056 X .092 TMWSE025
J370 700 GLASS BRAID .050 X .085 TMWGJ025
K482 900 GLASS BRAID .050 X .080 TMWGK025
T200 400 GLASS BRAID .050 X .080 TMWGT025
E430 800 GLASS BRAID .050 X .080 TMWGE025
ANSI
TYPE
MODEL TMPCB - RETRACTABLE SENSOR CABLES
DESCRIPTION TYPE JACKET +WIRE -WIRE PART
NUMBER
2 FT RETRACT CABLE
JBLACK WHITE RED TMPCBS01
KYELLOW YELLOW RED TMPCBS02
TBLUE BLUE RED TMPCBS03
E PURPLE PURPLE RED TMPCBS04

I
8751-717-767-6511
MODEL TMPCN - QUICK DISCONNECT STANDARD CONNECTORS
GENERAL DESCRIPTION
Standard Connectors are for use with the Standard Quick Disconnect TC
Probes. They are available in both male and female termination, and include a
“write on label” for easy identification. The female standard connector is a
universal connector, meaning it can be used to terminate male versions of both
the standard and miniature connector.
SPECIFICATIONS
1. CONNECTOR BODY MATERIAL: Glass Filled Nylon, for temperature
ranges of -29 to 220º C (-20 to 425 °F).
2. CONNECTOR BODY COLOR: ANSI color coded
3. WIRE GAGE: Accepts stranded or solid wire up to 14 AWG
4. WIRE TERMINATION: Combination Phillips/Slot Screws
ORDERING INFORMATION
ACCESSORIES
MODEL TMPCN - QUICK DISCONNECT MINIATURE CONNECTORS
GENERAL DESCRIPTION
Miniature Connectors are for use with the Miniature Quick Disconnect TC
Probes. They are available in both male and female termination, and include a
“write on label” for easy identification.
SPECIFICATIONS
1. CONNECTOR BODY MATERIAL: Glass Filled Nylon, for temperature
ranges of -29 to 220º C (-20 to 425 °F).
2. CONNECTOR BODY COLOR: ANSI color coded
3. WIRE GAGE: Accepts stranded or solid wire up to 20 AWG
4. WIRE TERMINATION: Combination Phillips/Slot Screws
ORDERING INFORMATION
0.10 DIA.
0.16
0.19
0.44
0.47
1.31
0.59
0.50
(12.7)
(15.06)
(33.33)
(2.5)
(11.90)
(3.96)
(4.77)
(11.11)
FRONT & REAR VIEW OF FEMALE
MALE AND FEMALE HAVE
THE SAME BODY DIMENSIONS
0.31 (8.0)
1.0 (25.4)
0.44 (11.1)
0.5
(12.7)
0.22 (5.5) WIRE ACCESS
HOLE
DIMENSIONS In inches (mm)
0.10
(2.5) DIA.
0.19
(4.8)
0.09
(2.3)
0.13
(3.3)
0.31
(7.9)
0.66
(16.8) 0.13 (3.3)
0.31 (7.9)
0.50
(12.7)
0.81
(20.6)
0.194 (4.93) WIRE HOLE
(25.4)
0.28
(7.16)
1.00
0.03 (0.8)
DIMENSIONS In inches (mm)
DESCRIPTION TYPE TERMINATION PART NUMBER
STANDARD
CONNECTOR
K
MALE TMPCNS01
FEMALE TMPCNS02
T
MALE TMPCNS03
FEMALE TMPCNS04
E
MALE TMPCNS05
FEMALE TMPCNS06
J
MALE TMPCNS07
FEMALE TMPCNS08
DESCRIPTION TYPE TERMINATION PART NUMBER
MINIATURE
CONNECTOR
K
MALE TMPCNM01
FEMALE TMPCNM02
T
MALE TMPCNM03
FEMALE TMPCNM04
E
MALE TMPCNM05
FEMALE TMPCNM06
J
MALE TMPCNM07
FEMALE TMPCNM08
MALE
FEMALE
Covered by US and Foreign Patents.
Covered by US and Foreign Patents.

I
876 www.redlion.net
GENERAL DESCRIPTION
Model TMPTJ transition joint probes are rugged temperature probes that
feature a spring strain relief at the “cold” end of the probe that prevents pinching
of the thermocouple wire that can occur in certain applications. These versatile
probes come in a variety of sheath diameters and materials. The probes are
standard 12" long transitioning to 40" of wire with exposed leads.
SPECIFICATIONS
1. SHEATH: Constructed of 304 stainless steel, Inconel 600, or XL (High
Temperature Probe)
2. SHEATH DIAMETER: 0.063" or 0.125"
3. PROBE LENGTH: 12" Ungrounded junction.
4. CONNECTOR BODY: Glass Filled Nylon, rated to 260º C.
5. WIRE INSULATION: Neoflon PFA
6. LEAD LENGTH: 40" (1 meter) with stripped ends
ORDERING INFORMATION
DIMENSIONS In inches (mm)
zCHOICE OF 304 SS, INCONEL 600 OR XL SHEATH
zSTRIPPED BARE WIRE ENDS
zXL HIGH TEMPERATURE PROBE AVAILABLE
zEASILY ATTACHES TO STANDARD AND MINI STYLE
CONNECTORS (SEE ACCESSORIES)
zMEETS OR EXCEEDS SLE AND EN 60584-2: TOLERANCE
CLASS 1
DESCRIPTION SHEATH MATERIAL
SHEATH
DIAMETER
INCHES
PART
NUMBER
K1/16 TMPKTJ01921 (1690)
KINCONEL 600 1/8 TMPKTJ021071 (1960)
K1/16 TMPKTJ03899 (1650)
K1/8 TMPKTJ04899 (1650)
KXL 1/8 TMPKTJ051149 (2100)
KXL 1/16 TMPKTJ061038 (1900)
ANSI
TYPE
TC
INCONEL 600
TRANSITION
JOINT
PROBES
* XL probes have a very low drift and are for use in high temperature
applications up to 1335° C.
UPPER TEMP
GUIDELINES
°C (°F)
TC JUNCTION
304 SS
304 SS
TRANSITION JOINT PROBES AND ACCESSORIES
MODEL TMP - TRANSITION JOINT PROBES
Note: Probe supplied with 40" (1 Meter) cable.

I
8771-717-767-6511
MODEL TMPCN - QUICK DISCONNECT STANDARD CONNECTORS
GENERAL DESCRIPTION
Standard Connectors are for use with the Standard Quick Disconnect TC
Probes. They are available in both male and female termination, and include a
“write on label” for easy identification. The female standard connector is a
universal connector, meaning it can be used to terminate male versions of both
the standard and miniature connector.
SPECIFICATIONS
1. CONNECTOR BODY MATERIAL: Glass Filled Nylon, for temperature
ranges of -29 to 220º C (-20 to 425 °F).
2. CONNECTOR BODY COLOR: ANSI color coded
3. WIRE GAGE: Accepts stranded or solid wire up to 14 AWG
4. WIRE TERMINATION: Combination Phillips/Slot Screws
ORDERING INFORMATION
ACCESSORIES
MODEL TMPCN - QUICK DISCONNECT MINIATURE CONNECTORS
GENERAL DESCRIPTION
Miniature Connectors are for use with the Miniature Quick Disconnect TC
Probes. They are available in both male and female termination, and include a
“write on label” for easy identification.
SPECIFICATIONS
1. CONNECTOR BODY MATERIAL: Glass Filled Nylon, for temperature
ranges of -29 to 220º C (-20 to 425 °F).
2. CONNECTOR BODY COLOR: ANSI color coded
3. WIRE GAGE: Accepts stranded or solid wire up to 20 AWG
4. WIRE TERMINATION: Combination Phillips/Slot Screws
ORDERING INFORMATION
0.10 DIA.
0.16
0.19
0.44
0.47
1.31
0.59
0.50
(12.7)
(15.06)
(33.33)
(2.5)
(11.90)
(3.96)
(4.77)
(11.11)
FRONT & REAR VIEW OF FEMALE
MALE AND FEMALE HAVE
THE SAME BODY DIMENSIONS
0.31 (8.0)
1.0 (25.4)
0.44 (11.1)
0.5
(12.7)
0.22 (5.5) WIRE ACCESS
HOLE
DIMENSIONS In inches (mm)
0.10
(2.5) DIA.
0.19
(4.8)
0.09
(2.3)
0.13
(3.3)
0.31
(7.9)
0.66
(16.8) 0.13 (3.3)
0.31 (7.9)
0.50
(12.7)
0.81
(20.6)
0.194 (4.93) WIRE HOLE
(25.4)
0.28
(7.16)
1.00
0.03 (0.8)
DIMENSIONS In inches (mm)
DESCRIPTION TYPE TERMINATION PART NUMBER
STANDARD
CONNECTOR
K
MALE TMPCNS01
FEMALE TMPCNS02
T
MALE TMPCNS03
FEMALE TMPCNS04
E
MALE TMPCNS05
FEMALE TMPCNS06
J
MALE TMPCNS07
FEMALE TMPCNS08
DESCRIPTION TYPE TERMINATION PART NUMBER
MINIATURE
CONNECTOR
K
MALE TMPCNM01
FEMALE TMPCNM02
T
MALE TMPCNM03
FEMALE TMPCNM04
E
MALE TMPCNM05
FEMALE TMPCNM06
J
MALE TMPCNM07
FEMALE TMPCNM08
MALE
FEMALE
Covered by US and Foreign Patents.
Covered by US and Foreign Patents.

I
878 www.redlion.net
MODEL TMPRT - SURFACE MOUNT AND PIPE PLUG RTD SENSORS
MODEL TMPRT - ADVANCED DESIGN SURFACE MOUNT RTD SENSOR
GENERAL DESCRIPTION
Model TMPRT "stick-on" style RTD temperature sensor mounts on flat
surfaces and provides Class B accuracy for critical monitoring applications.
Based on a bare 2 X 2 X .08 mm thin film platinum RTD, the unit is supplied in
a Neoflon PFA PFA insulated configuration and can be easily applied using its
self-adhesive backing. Some of the applications of this versatile RTD sensor
include monitoring chip, heat sink, and environmental temperatures in
electronic devices; checking piping or ducting temperatures; monitoring motor
and transformer core heat; testing insulation capabilities, as well as checking
other applications in which surface and/or gradient temperatures need to be
monitored and controlled.
z100 ΩDIN CLASS B (± 0.12 % AT 0°C) ACCURACY STANDARD
zEASY-INSTALLATION SILICONE BASED, SELF BACKING RATED
TO 260°C (500°F)
zSENSOR CAN BE REAPPLIED
zSTRIPPED 3 WIRE LEADS (CONNECTORS SOLD SEPARATELY)
z10 FOOT LEAD LENGTH
zIDEAL FOR FLAT OR CURVED SURFACES
SPECIFICATIONS
1. MINIMUM/MAXIMUM TEMPERATURE:
-73° C (-100° F) to 260° C (500° F) continuous
2. SENSING ELEMENT: 100 Ωat 0° C (32° F)
Temperature coefficient of 0.00385 Ω/Ω/°C (IEC60751)
3. ACCURACY: ± 0.12% at 0° C (DIN Class B)
4. RESPONSE TIME: Less than 0.9 s (63% response time in water flowing at
3 feet per second), less than 2 sec response time on a hot plate.
5. LEAD WIRE:10 foot 26 AWG stranded nickel plated copper, Neoflon PFA
PFA-insulated and jacket cable
6. ADHESIVE PAD DIMENSIONS: 1 x ¾ " (25 X 19 mm)
ORDERING INFORMATION
MODEL NO. DESCRIPTION TERMINATION
(COLD SIDE) LENGTH (FT) PART NUMBER
TMPRT SMT RTD NEOFLON PFA 10 TMPRT001
DIMENSIONS In inches (mm)
INSULATION
TYPE
STRIPPED WIRE
BARE ENDS
SURFACE MOUNT
PIPE PLUG

I
8791-717-767-6511
MODEL TMPCN - RTD PROBE CONNECTORS
GENERAL DESCRIPTION
RTD Mini Connectors are for use with RTD probes. They are miniature size,
and are available in both male and female termination.
SPECIFICATIONS
1. CONNECTOR BODY MATERIAL: Glass Filled Nylon, for temperature
ranges of -29 to 220º C.
2. CONNECTOR BODY COLOR: White
3. WIRE GAGE: Accepts stranded or solid wire up to 20 AWG
4. WIRE TERMINATION: Combination Phillips/Slot Screws
5. CONNECTOR ENDS: Copper
ORDERING INFORMATION
MODEL TMPRT - PIPE PLUG RTD SENSOR
GENERAL DESCRIPTION
The pipe plug RTD sensor is a unit specially designed for use in pressure
vessel applications. Its 3 wire construction provides connectivity to most hand
held instruments with Red/Red/White per IE/ASTM-E-1137. The unit features a
high accuracy 100 ΩClass A DIN platinum element and steel braided, Neoflon
PFA insulated wires for the necessary durability and protection demanded by
harsher environments.
zIDEAL FOR USE IN PRESSURE VESSEL APPLICATIONS, 172
BAR (2500 PSI) MAXIMUM
z6 MM (0.24") DIAMETER, SST PROBE
zSTEEL BRAIDED, NEOFLON PFA INSULATED LEAD WIRES
zHIGH ACCURACY 100 ΩCLASS A DIN PLATINUM ELEMENT
(ALPHA = 0.00385)
zSTRAIN RELIEF SPRING
SPECIFICATIONS
1. WIRE: 72" long 26 AWG insulated Neoflon PFA
2. MAX TEMPERATURE: 230º C (450º F)
3. TERMINATION: Stripped bare wire ends
4. OVERBRAID: Stainless Steel
5. THREADS: ¼" NPT
6. SENSING ELEMENT END DIAMETER: .24" (6mm)
ORDERING INFORMATION
MODEL NO. DESCRIPTION TYPE TERMINATION PART NUMBER
UMALE TMPCNM09
TMPCN
UFEMALE TMPCNM10
MODEL NO. DESCRIPTION CABLE
LENGTH
TERMINATION
(COLD SIDE) PART NUMBER
TMPRT PIPE PLUG RTD
SENSOR 6 ' STRIPPED BARE
WIRE ENDS TMPRT002
DIMENSIONS In inches (mm)
0.23
G+ –
G
+
–
0.13 DIA. TYP.
0.92
0.50
0.09
0.31
0.13
0.31
0.03
0.13
0.31
1.06
0.44
0.31
0.92
ELAMEFELAM
(3.3)
(5.8)
(2.3)
(7.9)
(3.3)
(7.9)
(23.4)
(12.7)
(26.9)
(11.2)
(0.8)
(3.3)
(7.9)
(23.4)
(7.9)
0.19 (4.93) WIRE
ACCESS HOLE
DIMENSIONS In inches (mm)
RTD miniature male
connector
RTD miniature female
connector

I
880 www.redlion.net
MODELS TMPT AND TMPTR - THERMOCOUPLE OR RTD CONNECTOR WITH
BUILT IN 4-20 mA TEMPERATURE TRANSMITTER
GENERAL DESCRIPTION
The model TMPT's internal circuitry conditions the non-linear millivolt
output of a thermocouple, across a specified temperature range, and retransmits
it as a standard 2-wire 4-20 mA analog output. The TMPTR also provides a 2-
wire 4-20 mA output by conditioning the resistive change of a 100Ω, 0.00385
RTD sensor and transmitting it as a 4-20 mA output.
SPECIFICATIONS
TMPT SPECIFICATIONS
1. SUPPLY VOLTAGE: 9 to 24 VDC @ 30 mA
2. OUTPUT: 4 to 20 mA
3. TEMPERATURE RANGE: See Ordering Information
4. ACCURACY: ± 0.5% of full scale millivolt input @ 23º C plus the non-
linearity of the thermocouple type (note that the TMPT does not compensate
for thermocouple non-linearity)
5. TEMPERATURE COEFFICIENT: ± 0.002 mA/ºC
6. MAX LOOP LOAD: (Ω) = (V supply - 9 V)/0.02 A
7. TRANSMITTER OPERATING TEMPERATURE: -40º to 85ºC
8. AGENCY APPROVAL: CE
9. RESPONSE TIME: 120 msec (0 to 63% FS)
10. THERMOCOUPLE JUNCTION: Ungrounded
11. CABLE CONNECTIONS: 10 foot 2-wire shielded cable
* Max cable run is determined by max loop load and wire resistance ( ≈1000ft).
TMPTR SPECIFICATIONS
1. SUPPLY VOLTAGE: 9 to 24 VDC @ 30 mA
2. OUTPUT: 4 to 20 mA
3. TEMPERATURE RANGE: 2 - 569º C (36 - 1056º F)
4. INPUT: 3 wire, PT100 (α= 0.00385)
5. OPEN SENSOR WIRE INDICATION:
Leg 1: Open = 27 mA
Leg 2: Open = 2.2 mA
Leg 3: Open = 2.2 mA
6. INPUT CONNECTION: 3 prong minature connector
7. CABLE CONNECTIONS: 10 foot 2-wire shielded cable
* Max cable run is determined by max loop load and wire resistance ( ≈1000ft).
zHIGH ACCURACY, REPEATABILITY AND STABILITY
zCONNECTOR DESIGN CONVERTS INPUT SIGNAL TO A
STANDARD 2-WIRE, 4-20 mA OUTPUT
zPROVIDES “OPEN SENSOR WIRE” SIGNAL INDICATION
zENCAPSULATED HOUSING
zCOMPENSATES FOR LONG LEAD WIRES
zFACTORY CALIBRATED, NO ADJUSTMENTS REQUIRED
zMODELS FOR J, K, T (UNGROUNDED) THERMOCOUPLES AND
100 OHM, 0.00385 3-WIRE RTD'S
WIRING CONNECTION
ORDERING INFORMATION
MODEL NO. DESCRIPTION TEMPERATURE
RANGE PART NUMBER
TMPTR
TMPT
J
J
T
T
K
-
K
-18 to 538 °C
(0 to 1000 °F)
-18 to 121 °C
(0 to 250 °F)
-18 to 399 °C
(0 to 750 °F)
-18 to 121 °C
(0 to 250 °F)
2 to 569 °C
(36 to 1056 °F)
-18 to 1093 °C
(0 to 2000 °F)
TMPTRN06
TMPTRN05
TMPTRN04
TMPTRN03
TMPTRN02
TMPTRN07
TMPTRN01
TC
ANSI TYPE
-18 to 538 °C
(0 to 1000 °F)
TC TRANSMITTER
WITH FEMALE
CONNECTOR
RTD TRANSMITTER
WITH FEMALE
CONNECTOR
SHIELDWHITE
OUTPUTBLACK
+VDCRED
FUNCTIONWIRE COLOR CODE
WIRE COLOR CODE FUNCTION
RED +VDC
BLACK OUTPUT
WHITE SHIELD
Covered by US and Foreign Patents.

I
8811-717-767-6511
SPECIFICATIONS
1. Operating Frequency: 50 to 400 Hz.
2. Insulation Class: 0.6 KV BIL 10 KV full wave.
3. Terminals: Brass studs No. 8-32 UNC with flat washer and hex nuts.
4. Window Diameter: 1.13" (28.7 mm).
5. Weight: 8.0 oz (226.0 g).
UL Recognized Component
(Instrument Transformers, Inc., PN# 2SFT500-0.1, 2SFT500, 2SFT201,
File # E93779)
Note: The listed current ratio of the current transformer is based on the primary
conductor passing once through the transformer opening. The ratio is reduced
in multiples by looping the conductor through the opening. A transformer
having a ratio 200:5 changes to a ratio of 100:5 if two loops are made through
the transformer with the primary conductor. The ratio of the transformer will
be 50:5 if four loops are made with the primary conductor, etc.
MODEL CT - CURRENT TRANSFORMER
DIMENSIONS In inches (mm)
ORDERING INFORMATION
CURRENT
RATIO
ACCURACY
@ 60 Hz
VA 60 Hz
BURDEN
MAXIMUM OUTPUT WIRE DISTANCE BETWEEN
CT AND METER PART NUMBERS
18 AWG 16 AWG 14 AWG 12 AWG
50:0.1 ±5.0% 2.5 CT005001
50:5 ±3.0% 2.0 5.0 ft. 7.5 ft. 12 ft. 18 ft. CT005050
200:5 ±1.0% 4.0 10 ft. 17.5 ft. 28 ft. 43 ft. CT020050
Wire distance is not an issue due to the low
current flow. Wires may be as long as needed.

I
882 www.redlion.net
DESCRIPTION
The CT004 is intended for use with temperature controllers for monitoring
heater current. The CT004 is suitable for general purpose AC current
monitoring applications up to 40 Amps.
SPECIFICATIONS
1. CURRENT RATIO: 40:0.1A
2. MAX HEATER CURRENT: 50 A.
3. DIELECTRIC STRENGTH: 1000 VAC ( For 1 minute)
4. VIBRATION RESISTANCE: 50 Hz (Approx. 10 G)
5. TERMINALS: Solder type
6. WINDOW DIAMETER: 0.228" (5.8 mm).
7. WEIGHT: 0.406 oz (11.5 g).
Notes: Refer to the instruction manual of the temperature controller for
connection information and max. heater current allowable by the
temperature controller.
ORDERING INFORMATION
MODEL CT004 - CURRENT TRANSFORMER
DIMENSIONS In inches (mm)
MODEL NO. CURRENT RATIO PART NUMBER
CT004 40 : 0.1 A CT004001

I
8831-717-767-6511
zTHREE JUMPER SELECTABLE INPUT RANGES
zOUTPUT IS MAGNETICALLY ISOLATED FROM THE INPUT
zINTERNAL POWER REGULATION
zSPLIT-CORE CASE FOR EASY INSTALLATION
GENERAL DESCRIPTION
CTD transducer combines a Hall Effect sensor and a signal conditioner into a
single package. This provides higher accuracy, lower wiring costs, easier
installation and saves valuable panel space. The CTD has jumper selectable
current input ranges and industry standard 4-20 mA output with a split-core case.
SAFETY SUMMARY
All safety related regulations, local codes and instructions that appear in the
literature or on equipment must be observed to ensure personal safety and to
prevent damage to either the instrument or equipment connected to it. If
equipment is used in a manner not specified by the manufacturer, the protection
provided by the equipment may be impaired.
Do not use this unit to directly command motors, valves, or other actuators
not equipped with safeguards. To do so, can be potentially harmful to persons or
equipment in the event of a fault to the unit.
SPECIFICATIONS
1. OUTPUT SIGNAL: 4-20 mA
2. OUTPUT LIMIT: 23 mA
3. ACCURACY: 1.0% FS
4. REPEATABILITY: 1.0% FS
5. RESPONSE TIME: to 90% of step change 100 msec
6. FREQUENCY RANGE: DC
7. POWER SUPPLY: 22 – 26 VAC/VDC
Power input and output signal are not isolated.
8. POWER CONSUMPTION: 2 VA
9. LOADING: 650Ωmax.
10. ISOLATION VOLTAGE: 3 kV (monitored line to output)
11. LINEARITY: 0.75% FS
12. CURRENT RANGES: Three selectable Ranges: 0 – 50 A
0 – 75 A
0 – 100 A
13. CASE: UL 94V-0 Flammability rated thermoplastic
14. ENVIRONMENTAL: -4 to 122 °F (-20 to 50 °C)
0-95% RH, non-condensing
MODEL CTD - DC CURRENT TRANSDUCER
CAUTION: Read complete
instructions prior to installation
and operation of the unit.
CAUTION: Risk of electric shock.
0.85
(21.7)
2.25
(57.2)
1.18
(30)
0.45
(11.4)
Ø 0.19
(4.8)
0.85
(21.6)
3.53
(89.7)
3.04
(77.2)
2.40
(61)
DIMENSIONS In inches (mm)

I
884 www.redlion.net
INSTALLATION
Run wire to be monitored through opening in the sensor. Be sure the
monitored current flows in the same direction as the arrow on the sensor. The
arrow is just above the hinge, with the “+” symbol on the left, the “-” symbol on
the right. The CTD transducers work in the same environment as motors,
contactors, heaters, pull-boxes, and other electrical enclosures. They can be
mounted in any position or hung directly on wires with a wire tie. Just leave at
least one inch (25.4 mm) distance between sensor and other magnetic devices.
Split-Core Versions
Press the tab in the direction as shown to open the sensor. After placing the
wire in the opening, press the hinged portion firmly downward until a definite
click is heard and the tab pops out fully.
KEEP SPLIT-CORE SENSORS CLEAN.
Silicone grease is factory applied on the mating surfaces to prevent rust and
improve performance. Be careful not to allow grit or dirt onto the grease in the
contact area. Operation can be impaired if the mating surfaces do not have good
contact. Check visually before closing.
OUTPUT WIRING
Connect control or monitoring wires to the sensor. Use up to 14 AWG copper
wire and tighten terminals to 4 inch-pounds torque.
4-20mA:
The current loop is powered by the CTD Transducer.
Maximum loop impedance is 650 Ω.
RANGE SELECT
CTD transducers feature field selectable ranges. The ranges are factory
calibrated, eliminating time consuming and inaccurate field setting of zero or
span.
1. Determine the normal operating amperage of your monitored circuit.
2. Select the range that is equal to or slightly higher than the normal operating
amperage.
3. Place the range jumper in the appropriate position.
TROUBLE SHOOTING
1. Output Signal Too Low
A. The jumper may be set in a range that is too high for current being
monitored. Move jumper to the correct range.
B. Power supply is inadequate. Check power supply. Make sure it is of
sufficient voltage with all loads at maximum. CTD Series draw 2.0 VA.
C. Output load too high. Check output load, be sure it is no more than 650 Ω.
2. Output Signal is always at maximum
A. The jumper may be set in a range that is too low for current being
monitored. Move jumper to the correct range.
3. Sensor has no output
A. Polarity is not properly matched. Check and correct wiring polarity
B. Monitored load is not DC or is not on. Check that the monitored load is
DC and that it is actually on.
C.Split Core models: The core contact area may be dirty. Open the sensor and
clean the contact area.
Important!
Keep Contact
Area CLEAN!
To Open
Press Tab
Toward Hinge.
DESCRIPTION PART NUMBERS
CTD DC/DC, Split Case CTD00000
ORDERING INFORMATION
CONNECTION NOTES:
Deadfront captive screw
terminals.
12–22 AWG solid or stranded.
Observe polarity.
Output loop is powered by
CTD Transducer. No loop power
supply required.
24VAC/DC
MODEL NO.

I
8851-717-767-6511
zAVERAGE RESPONDING OUTPUT: 0-10 VDC or 4-20 mA
zJUMPER SELECTABLE RANGES
zOUTPUT IS MAGNETICALLY ISOLATED FROM THE INPUT
zSPLIT-CORE AND FIXED-CORE CASES
GENERAL DESCRIPTION
CTL Series transducers combine a current transformer and a signal
conditioner into a single package. This provides higher accuracy, lower wiring
costs, easier installation and saves valuable panel space.
The CTL Series transducers have jumper selected current input ranges and
industry standard 0-10 VDC or 4-20 mA outputs. The CTL Series is designed
for application on “linear” or sinusoidal AC loads. Available in a split-core or
solid-core case. Select the CTL Series for constant speed loads or On/Off loads.
SAFETY SUMMARY
All safety related regulations, local codes and instructions that appear in the
literature or on equipment must be observed to ensure personal safety and to
prevent damage to either the instrument or equipment connected to it. If
equipment is used in a manner not specified by the manufacturer, the protection
provided by the equipment may be impaired.
Do not use this unit to directly command motors, valves, or other actuators
not equipped with safeguards. To do so, can be potentially harmful to persons or
equipment in the event of a fault to the unit.
SPECIFICATIONS
7. INPUT RANGES: (Jumper Selectable)
8. ISOLATION VOLTAGE: 3 kV
9. CASE: UL 94V-0 Flammability rated thermoplastic
10. ENVIRONMENTAL: -4 to 122 °F (-20 to 50 °C)
0-95% RH, non-condensing
11. TORQUE RATINGS: 7 in-lbs on Fixed-core models; 9 in-lbs on Split-core
models.
12. LISTING: UL 508 Industrial Control Equipment, CSA C22.2 No. 14-M95,
and CE Certified.
MODEL CTL - AVERAGE RESPONDING AC CURRENT TRANSDUCERS
CAUTION: Read complete
instructions prior to installation
and operation of the unit.
CAUTION: Risk of electric shock.
C
C
US LISTED
US LISTED
UL
R
IND. CONT. EQ.
5T44
MODEL RANGE MAXIMUM
6 secContinuous 1 sec
CTL050
CTL005 2 A 125 A80 A 250 A
5 A 125 A100 A 250 A
50 A
20 A
10 A
215 A
150 A
125 A
175 A
110 A
80 A
400 A
300 A
250 A
CTL200
100 A 300 A200 A 600 A
150 A 450 A300 A 800 A
200 A 500 A400 A 1000 A
0.85
(21.6)
0.85
(21.6)
3.53
(89.7)
2.40
(61)
3.04
(77.2)
Ø 0.19
(4.8)
2.25
(57.2)
1.19
(30.2)
DIMENSIONS In inches (mm)
3.50
(88.9)
3.03
(77.0)
0.93
(23.6)
Ø 0.19
(4.8) 2.40
(61.0)
2.18
(55.4)
Ø 0.74
(19)
DIMENSIONS In inches (mm)
0-10 VDC 4-20 mA
1. OUTPUT SIGNAL: 0-10 VDC 4-20 mA
2. OUTPUT LIMIT: 15 VDC 40 mA
3. FREQUENCY RANGE: 50-60 Hz 20-100 Hz
4. RESPONSE TIME: 100 msec 300 msec
6. POWER SUPPLY:
5. ACCURACY:
Self-powered
1.0% FS 0.5% FS
SPLIT-CORE
FIXED-CORE
24 VDC Nominal, 40 VDC max.

I
886 www.redlion.net
INSTALLATION
Run wire to be monitored through opening in the sensor. The CTL Series
transducers work in the same environment as motors, contactors, heaters, pull-
boxes, and other electrical enclosures. They can be mounted in any position or
hung directly on wires with a wire tie. Just leave at least one inch (25.4 mm)
distance between sensor and other magnetic devices.
Split-Core Versions
Press the tab in the direction as shown to open the sensor. After placing the
wire in the opening, press the hinged portion firmly downward until a definite
click is heard and the tab pops out fully.
KEEP SPLIT-CORE SENSORS CLEAN.
Silicone grease is factory applied on the mating surfaces to prevent rust and
improve performance. Be careful not to allow grit or dirt onto the grease in the
contact area. Operation can be impaired if the mating surfaces do not have good
contact. Check visually before closing.
OUTPUT WIRING
Connect control or monitoring wires to the sensor. Use up to 14 AWG copper
wire and tighten terminals to 7 inch-pounds torque for solid-core models and 9
inch-pounds torque for split-core models. Be sure the output load or loop power
requirements are met (see diagram).
POWER SUPPLY
CONNECTIONS
RANGE SELECT
CTL series transducers feature field selectable ranges. The ranges are factory
calibrated, eliminating time consuming and inaccurate field setting of zero or span.
1. Determine the normal operating amperage of your monitored circuit
2. Select the range that is equal to or slightly higher than the normal operating
amperage.
3. Place the range jumper in the appropriate position.
TROUBLE SHOOTING
0-10 VDC OUTPUT MODELS
1. Sensor Has No Output
A. Polarity is not properly matched. Check and correct wiring polarity.
B. Monitored load is not AC or is not on. Check that the monitored load is AC
and that it is actually on.
C. Split Core models: The core contact area may be dirty. Open the sensor and
clean the contact area.
2. Output Signal Too Low
A. The jumper may be set in a range that is too high for current being
monitored. Move jumper to the correct range.
B. Output load too low. Check output load, be sure that it is at least 100KΩ
and preferably 1 MΩ.
C. Monitored current is below minimum required. Loop the monitored wire
several times through the aperture until the “sensed” current rises above
minimum. Sensed Amps = (Actual Amps) x (Number of Loops). Count
loops on the inside of the aperture.
3. Output Signal Is Always At Maximum
A. The jumper may be set in a range that is too low for current being
monitored. Move jumper to the correct range.
4-20 mA OUTPUT MODELS
1. Sensor Has No Output
A. Power supply is not properly sized. Check power supply voltage and
current rating.
B. Polarity is not properly matched. Check and correct wiring polarity
C. Split Core models: The core contact area may be dirty. Open the sensor and
clean the contact area.
2. Output Signal Too Low
A. The jumper may be set in a range that is too high for current being
monitored. Move jumper to the correct range.
B. The load current is not sinusoidal.
C. Monitored current is below minimum required. Loop the monitored wire
several times through the aperture until the “sensed” current rises above
minimum. Sensed Amps = (Actual Amps) x (Number of Loops). Count
loops on the inside of the aperture.
3. Sensor Is Always At 4 mA
A. Monitored load is not AC or is not on. Check that the monitored load is
AC and that it is actually on.
4. Output Signal Is Always At 20 mA
A. The jumper may be set in a range that is too low for current being
monitored. Move jumper to the correct range.
Important!
Keep Contact
Area CLEAN!
To Open
Press Tab
Toward Hinge.
ORDERING INFORMATION
2(+)1(–)
Output
Range Jumper
(+)(–)
24 VDC Power
(+)
(–)
Load
(Controller,
Meter, etc.)
2(+)1(–)
Output
Range Jumper
4–20mA Option
10 VDC Option 1M
Ω
Recommended
100K
Ω
Acceptable (Add
Notes: Captive screw terminals.
12–22 AWG solid or stranded.
Observe polarity.
1.3% error for 100 K)
250
1000750
Total Loop Impedance (Ohms)
25
20
15
10
5
Loop Power (VDC)
Operating Range
V
L
= 12VDC + (R
L
× 0.020A)
where V
L
= Minimum Loop Supply
R
L
= Total Loop Resistance (Ohms)
500
0
MODEL NO. DESCRIPTION PART NUMBER
CTL005 2-5A / 4-20 mA, Split Case CTL0052S
10A-50 A / 10 VDC, Fixed Case CTL0501F
10A-50 A / 4-20 mA, Fixed Case CTL0502FCTL050
10A-50 A / 4-20 mA, Split Case CTL0502S
100A-200 A / 10 VDC, Fixed Case CTL2001F
100A-200 A / 4-20 mA, Fixed Case CTL2002F
CTL200
100A-200 A / 4-20 mA, Split Case CTL2002S

I
8871-717-767-6511
zTRUE RMS OUTPUT
zJUMPER SELECTABLE RANGES
zOUTPUT IS MAGNETICALLY ISOLATED FROM THE INPUT
zSPLIT-CORE CASE
GENERAL DESCRIPTION
CTR Series transducers combine a current transformer and a signal
conditioner into a single package. This provides higher accuracy, lower wiring
costs, easier installation and saves valuable panel space.
The CTR Series transducers are available in 4-20 mA output only. The CTR
Series provides a “True RMS” output on distorted waveforms found on VFD or
SCR outputs, and on linear loads in “noisy” power environments. Select the
CTR Series for variable speed or SCR controlled loads.
The current waveform of a typical linear load is a pure sine wave. In VFD and
SCR applications, however, output waveforms are rough approximations of a
sine wave. There are numerous spikes and dips in each cycle. CTR transducers
use a mathematical algorithm called “True RMS”, that integrates the actual
waveform over time. The output is the amperage component of the true power
(heating value) of the AC current waveform.True RMS is the only way to
accurately measure distorted AC waveforms.
SAFETY SUMMARY
All safety related regulations, local codes and instructions that appear in the
literature or on equipment must be observed to ensure personal safety and to
prevent damage to either the instrument or equipment connected to it. If
equipment is used in a manner not specified by the manufacturer, the protection
provided by the equipment may be impaired.
Do not use this unit to directly command motors, valves, or other actuators
not equipped with safeguards. To do so, can be potentially harmful to persons or
equipment in the event of a fault to the unit.
SPECIFICATIONS
1. OUTPUT SIGNAL: 4 to 20 mA DC, loop-powered, True RMS
2. OUTPUT LIMIT: 23 mA
3. FREQUENCY RANGE: 10-400 Hz (All Waveforms)
4. RESPONSE TIME: to 90% of step change 600 msec
5. ACCURACY: 0.8% FS
6. POWER SUPPLY: 24 VDC Nominal, 40 VDC Max.
7. INPUT RANGES: (Jumper Selectable)
8. ISOLATION VOLTAGE: 3 kV
9. CASE: UL 94V-0 Flammability rated thermoplastic
10. ENVIRONMENTAL: -4 to 122 °F (-20 to 50 °C)
0-95% RH, non-condensing
11. TORQUE RATINGS: 9 in-lbs
12. LISTING: UL 508 Industrial Control Equipment, CSA C22.2 No. 14-M95,
and CE Certified.
MODEL CTR - TRUE RMS AC CURRENT TRANSDUCER
CAUTION: Read complete
instructions prior to installation
and operation of the unit.
CAUTION: Risk of electric shock.
C
C
US LISTED
US LISTED
UL
R
IND. CONT. EQ.
5T44
MODEL RANGE MAXIMUM
6 secContinuous 1 sec
CTR05
10 A 125 A80 A 250 A
20 A 150 A110 A 300 A
50 A 215 A175 A 400 A
CTR2
100 A 300 A200 A 600 A
150 A 450 A300 A 800 A
200 A 500 A400 A 1000 A
0.85
(21.6)
0.85
(21.6)
2.25
(57.2)
3.53
(89.7)
3.04
(77.2)
1.18
(30)
0.45
(11.4)
2.40
(31)
Ø 0.19
(4.83)
DIMENSIONS In inches (mm)

I
888 www.redlion.net
INSTALLATION
Run wire to be monitored through opening in the sensor. Be sure the
monitored current flows in the same direction as the arrow on the sensor. The
CTR Series transducers work in the same environment as motors, contactors,
heaters, pull-boxes, and other electrical enclosures. They can be mounted in any
position or hung directly on wires with a wire tie. Just leave at least one inch
(25.4 mm) distance between sensor and other magnetic devices.
Split-Core Versions
Press the tab in the direction as shown to open the sensor. After placing the
wire in the opening, press the hinged portion firmly downward until a definite
click is heard and the tab pops out fully.
KEEP SPLIT-CORE SENSORS CLEAN.
Silicone grease is factory applied on the mating surfaces to prevent rust and
improve performance. Be careful not to allow grit or dirt onto the grease in the
contact area. Operation can be impaired if the mating surfaces do not have good
contact. Check visually before closing.
OUTPUT WIRING
Connect control or monitoring wires to the sensor. Use up to 14 AWG copper
wire and tighten terminals to 9 inch-pounds torque. Be sure the output load or
loop power requirements are met (see diagram).
Connection Notes:
Captive screw terminals.
14-22 AWG solid or stranded.
Observe Polarity
See label for ranges & jumper positions
Loop Voltage Requirements:
VL= 12V + (RLx 20 mA)
Where: VL= Min. Loop voltage
RL= Loop Resistance
RANGE SELECT
CTR series transducers feature field selectable ranges. The ranges are
factory calibrated, eliminating time consuming and inaccurate field setting of
zero or span.
1. Determine the normal operating amperage of your monitored circuit
2. Select the range that is equal to or slightly higher than the normal operating
amperage.
3. Place the range jumper in the appropriate position.
TROUBLE SHOOTING
1. Sensor Has No Output
A. Power supply is not properly sized. Check power supply voltage and
current rating.
B. Polarity is not properly matched. Check and correct wiring polarity.
C. Split Core models: The core contact area may be dirty. Open the sensor and
clean the contact area.
2. Output Signal Too Low
A. The jumper may be set in a range that is too high for current being
monitored. Move jumper to the correct range.
B. Output load too high. Check output load, be sure that VLdoes not exceed
40 VDC.
C. Monitored current is below minimum required. Loop the monitored wire
several times through the aperture until the “sensed” current rises above
minimum. Sensed Amps = (Actual Amps) x (Number of Loops). Count
loops on the inside of the aperture.
3. Output Signal Is Always At 4mA
A. Monitored load is not AC or is not on. Check that the monitored load is
AC and that it is actually on.
4. Output Signal Is Always At 20mA
A. The jumper may be set in a range that is too low for current being
monitored. Move jumper to the correct range.
Important!
Keep Contact
Area CLEAN!
To Open
Press Tab
Toward Hinge.
DESCRIPTION PART NUMBERS
CTR
200 A/4-20 mA, Split Case
50 A/4-20 mA, Split Case
CTR20000
CTR05000
ORDERING INFORMATION
MODEL NO.

I
8891-717-767-6511
zUNIVERSAL OUTPUT
zSELF-POWERED
zEASILY ADJUSTABLE SETPOINT
zFIXED OR SPLIT-CORE CASE
GENERAL DESCRIPTION
CTS Series Transducers are self-powered, solid-state current-operated
switches that trigger when the current level sensed through the aperature
exceeds the adjusted setpoint. The solid state output contacts can switch AC or
DC; this “universal” output makes them well suited for application in
automation systems.
CTS Series Current Operated Switches combine a current transformer, signal
conditioner and limit alarm into a single package for use in status monitoring or
proof of operation applications. Offering an extended setpoint range of 1-150 A
and universal, solid-state outputs, the self-powered CTS can be tailored to
provide accurate and dependable digital indication of over-current conditions
across a broad range of applications. Available in solid-core enclosure styles or
in a split-core case to maximize ease of installation.
SAFETY SUMMARY
All safety related regulations, local codes and instructions that appear in the
literature or on equipment must be observed to ensure personal safety and to
prevent damage to either the instrument or equipment connected to it. If
equipment is used in a manner not specified by the manufacturer, the protection
provided by the equipment may be impaired.
Do not use this unit to directly command motors, valves, or other actuators
not equipped with safeguards. To do so, can be potentially harmful to persons or
equipment in the event of a fault to the unit.
SPECIFICATIONS
1. POWER SUPPLY: None - self powered
2. OUTPUT: Magnetically isolated normally open solid-state switch
3. OUTPUT RATING: 0.15A, 240 VAC/VDC
4. OFF STATE LEAKAGE: <10 μA
5. RESPONSE TIME: 120 msec
6. HYSTERESIS: Approx 5% of Setpoint
7. SETPOINT RANGES AND MAXIMUM AMPS:
8. SETPOINT ADJUST: 4 Turn potentiometer (CTSS)
15 Turn Potentiometer (CTSF)
9. FREQUENCY RANGE: 6-100 Hz
10. ISOLATION VOLTAGE: UL Listed to 1,270 VAC. Tested to 5,000 VAC
11. CASE: UL 94V-0 Flammability rated thermoplastic
12. ENVIRONMENTAL: -58 to 149 °F (-50 to 65 °C)
0-95% RH, non-condensing
13. TORQUE RATINGS: 5 in-lbs
14. LISTING: UL 508 Industrial Control Equipment, CSA C22.2 No. 14-M95,
and CE Certified.
MODEL CTS - AC CURRENT OPERATED SWITCH
C
C
US LISTED
US LISTED
UL
R
IND. CONT. EQ.
5T44
0.85
(21.6)
0.85
(21.6)
3.53
(89.7)
2.40
(61)
3.04
(77.2)
Ø 0.19
(4.8)
2.25
(57.2)
1.19
(30.2)
DIMENSIONS In inches (mm) SPLIT-CORE
3.50
(88.9)
3.03
(77.0)
0.93
(23.6)
Ø 0.19
(4.8) 2.40
(61.0)
2.18
(55.4)
Ø 0.74
(19)
DIMENSIONS In inches (mm) FIXED-CORE
1000 A250 A 400 A
1000 A150 A 400 ASplit-Core: 1.75 - 150 A
1000 A150 A 400 AFixed-Core: 1 - 150 ACTSF
CTSS
CTSG
1 secContinuous 6 sec
MAXIMUM INPUT AMPS
SETPOINT RANGEMODEL
CAUTION: Risk of Danger.
Read complete instructions prior to
installation and operation of the unit.
CAUTION: Risk of electric shock.
Fixed-Core Go/No Go:
0.75 A max

I
890 www.redlion.net
INSTALLATION
Run wire to be monitored through opening in the sensor. The CTS Series
transducers work in the same environment as motors, contactors, heaters, pull-
boxes, and other electrical enclosures. They can be mounted in any position or
hung directly on wires with a wire tie. Just leave at least one inch (25.4 mm)
distance between sensor and other magnetic devices.
Split-Core Versions
Press the tab in the direction as shown to open the sensor. After placing the
wire in the opening, press the hinged portion firmly downward until a definite
click is heard and the tab pops out fully.
KEEP SPLIT-CORE SENSORS CLEAN.
Silicone grease is factory applied on the mating surfaces to prevent rust and
improve performance. Be careful not to allow grit or dirt onto the grease in the
contact area. Operation can be impaired if the mating surfaces do not have good
contact. Check visually before closing.
OUTPUT WIRING
Connect control or monitoring wires to the sensor. Use up to 14 AWG copper
wire and tighten terminals to 5 inch-pounds torque. Be sure the output load does
not exceed the switch rating.
CAUTION: Incandescent lamps can have “Cold Filament Inrush” current of up
to 10 times their rated amperage. Use caution when switching lamps.
SETPOINT ADJUSTMENT
CTS Series SETPOINT is adjusted with a 4-turn potentiometer (CTSS) or a
15-turn potentiometer (CTSF). The pot is shipped factory set to the lowest
setpoint, fully clockwise (CW). Turning the pot counter-clockwise (CCW) will
increase the setpoint. The pot has a slip-clutch to prevent damage at either end
of its rotation. To determine where the adjustment is, turn the pot all the way
CW. This will return it to the minimum setpoint.
Adjustment Notes:
1. Output contacts are solid-state. Check output status by applying voltage to the
contacts and reading the voltage drop across the contacts. An Ohmmeter set
on “Continuity” will give misleading results.
2. It is recommended that the setpoint be adjusted to allow for voltage variations
of 10-15%.
Typical Adjustment
1. Turn the pot to minimum setpoint (4 or 15 turns CW).
2. Have normal operating current running through the sensor. The output
should be tripped since the pot is at its minimum setpoint. For units with
LED, it should be flashing fast (2 to 3 times per second).
3. Turn the pot CCW until the unit un-trips. This is indicated by the slow
flashing of the LED (once every 2 to 3 seconds), or by the changing of
the output switch status.
4. Now turn the pot CW slowly until the unit trips again.
It is now set at the current level being monitored.
A. To Set UNDERLOAD - Turn the pot about 1/8 turn further CW.
B. To Set OVERLOAD - Turn the pot about 1/8 turn further CCW.
TROUBLE SHOOTING
1. Sensor Is Always Tripped
A. The setpoint may be too low. Turn pot CCW to increase setpoint.
B. Switch has been overloaded and contacts are burned out. Check the output
load, remembering to include inrush on inductive loads (coils, motors,
ballasts).
2. Sensor Will Not Trip
A. The setpoint may be too high. Turn pot CW to decrease setpoint.
B. Split Core models: The core contact area may be dirty. Open the sensor and
clean the contact area.
C. Monitored current is below minimum required. Loop the monitored wire
several times through the aperture until the “sensed” current rises above
minimum. Sensed Amps = (Actual Amps) x (Number of Loops). Count
loops on the inside of the aperture.
D. Switch has been overloaded and contacts are burned out. Check the output
load, remembering to include inrush on inductive loads (coils, motors,
ballasts).
Important!
Keep Contact
Area CLEAN!
To Open
Press Tab
Toward Hinge.
DESCRIPTION PART NUMBERS
CTS
.75 A Fixed-Core Current Switch, Go-No Go
1-150 A Fixed-Core Current Switch, Adjustable
CTSG0000
CTSF0000
CTSS0000
ORDERING INFORMATION
MODEL NO.
MONITORED AMPS OUTPUT SMART-LED
None or <Min. OPEN OFF
Below Trip Level OPEN SLOW (2 sec)
Above Trip Level CLOSED FAST (0.5 sec)
1.75-150 A Split-Core Current Switch, Adjustable

1-717-767-6511
PC BOARD MOUNT
DISPLAYS
J
The Trusted Source for
Innovative Control
Solutions
891

Page 895 Page 896 Page 897 Page 898
J
892 www.redlion.net
QUICK Specs
6 Digit, .2" (5mm) LCD
6 Digit, .35" (9mm) LCD
Selectable Decimal Point
8 Digit, .3" (7mm) LCD
Selectable Decimal Point
6 Digit, .35" (9mm) LCD
Selectable Decimal Point
5 1/2 Digit, .35" (9mm) LCD
Display
Count Indication Count Indication Count/Position Indication Time/Count Indication
Uni-Directional
Latch
Uni-Directional
Inhibit
Latch
Uni-Directional
Up/Down
Quadrature
Inhibit
Latch
Uni-Directional
x1, ÷10, ÷100, ÷1000
Timer Ranges:
0.1 hr.
0.01 hr.
0.1 min.
500,000 CPS 500,000 CPS 500,000 CPS 500,000 CPS
Remote Reset Remote Reset Remote Reset Remote Reset
Timer Running Indicator
2.5-6 VDC
15 µA Typical
4.5-5 VDC
35 µA Typical
2.5-6 VDC
15 µA Typical
2.5-6 VDC
15 mA Typical
Plastic, PC Board
Snap-Mount
with Elastomeric
Connection
Plastic, PC Board
Snap-Mount
with Elastomeric
Connection
Plastic, PC Board
Snap-Mount
with Elastomeric
Connection
Plastic, PC Board
Snap-Mount
with Elastomeric
Connection
26 mm (H) x 48 mm (W)
17 mm (H) x 27 mm (W) 26 mm (H) x 48 mm (W) 26 mm (H) x 48 mm (W) 26 mm (H) x 48 mm (W)
Max. Input
Frequency
Reset/
Features
Dimensions
(Height)x (Width)
Power Source/
Requirements
Input Modes
Description
SUB-CUB 1 & 2 SUB-CUB 2-8A SUB-CUB D SUB-CUB T
LCD DISPLAY
Counters
Construction
Page Number

Page 899 Page 900
-0.5 to 7.0 VDC
(Higher voltages can be applied
with an external resistor limiting
current to less than 450 µA.)
0 to +/-199.9 mV DC
+/-(0.1% + 1 Digit)
1,000,000 CPS N/A
Rate Multiplier/Prescaler from
0.0001 to 1.9999,
10 Timer Ranges,
Selectable Decimal Point
Automatic Zeroing
Circuit, Five
Selectable Display
Annunciators
5.0 VDC +/-10% (50 µA max),
5.0 VDC +/-10% (25 mA max)
Backlighting
4.8-6 VDC (5 mA max),
4.8-6 VDC (20 mA max)
Backlighting
Plastic Case
w/Solder Pin Connectors
Panel or PC Board
Versions
Plastic Case
w/Solder Pin Connectors
Panel or PC Board
Versions
23 mm (H) x 42 mm (W) 23 mm (H) x 42 mm (W)
Max. Input
Frequency
Reset/
Features
Dimensions
(Height)x (Width)
Power Source/
Requirements
Input Modes
Construction
3 1/2 Digit, .4" (10mm) LCD
Reflective, Yellow/Green
or
Red LCD Backlighting
Selectable Decimal Point
3 1/2 Digit, .4" (10mm) LCD
Reflective, Yellow/Green
or
Red LCD Backlighting
Selectable Decimal Point
Display
Counter/Time/Rate D.C. Voltmeter
Description
J
8931-717-767-6511
QUICK Specs
LCD DISPLAY
MDMU MDMV
Counters
Page Number

J
894 www.redlion.net
This page intentionally left blank.

J
8951-717-767-6511
APPLICATIONS INCLUDE:
OVENDING MACHINES
OVIDEO GAMES
OCOMPUTERS
OUTILITY METERS
OOFFICE COPIERS
OP.C.’S
OFLOW METERS
OTEST EQUIPMENT
ODISPENSING EQUIP.
OMACHINE CONTROLS
OMEDICAL EQUIPMENT
OPORTABLE INSTRUMENTS
- LSI COUNTER CHIP WITH LCD DISPLAY
- SNAP MOUNTS DIRECTLY ON P.C. BOARD
OAVAILABLE IN TWO SIZES
SUB-CUB 1 - 0.2"(5 mm) HIGH DISPLAY
*SUB-CUB 2 - 0.35"(8.9 mm) HIGH DISPLAY
OSOLDERLESS, ELASTOMERIC INTERCONNECTS
OULTRA-LOW POWER, 5 V AT 15 μA TYPICAL
OLATCHABLE DISPLAY WITH LEADING ZERO BLANKING
OCOUNT RATES TO 500 KHz
OIDEAL IN APPLICATIONS FOR:
REGISTER, STATUS & USAGE COUNTING
FREQUENCY, EPUT, & RPM INDICATION
TIMER, PULSE-WIDTH & PERIOD READOUT
*ACCESSORY HARDWARE AVAILABLE FOR PANEL MOUNTING SUB-CUB 2
DESCRIPTION
As a completely self-contained counter/display module, SUB-CUB’s can be
treated as a component just like any other I.C. The modules contain a custom
monolythic counter/driver chip that performs all the counting functions
together with a 6-digit LCD readout. The latchable display with the separate
reset function permits these modules to be used as frequency or rate meters,
timers, phase-angle or pulse width indicators and for other complex readout
requirements in addition to simple high speed counting.
These modules are ideal for internal “on-board” applications where a
readout of count, frequency, time, etc. is needed within a circuit enclosure for
maintenance, diagnostic, tune-up, or other data readout requirements. The
SUB-CUB 2, with its larger display, can also be mounted with a convenient
bezel kit to provide a very flexible and econmical panel instrument.
SUB-CUB’s snap-mount directly on any 1/16" P.C. Board that has been
etched to provide a mating interconnect pad pattern with two mounting holes
and a polarizing “key” hole. Interconnections to the P.C. Board as well as
internal connections are made with elastomeric connectors that provide
corrosion-proof, gas tight, interface contacts for high reliability.
SUB-CUB 1 & 2 - COMPLETE 6-DIGIT COMPONENT COUNTERS
MOUNTING & DIMENSIONS
Snap in mounting on the P.C. Board is facilitated by two, split, lock-ramp
pins which engage mounting holes drilled in the P.C. Board. The silicone
rubber elastomeric connectors compress to accommodate P.C. Board thickness
variation of ±0.005" (0.13 mm).
DIMENSIONS
In Inches (mm)
P.C. BOARD LAYOUT
P.C. Board pads may be gold or tin-lead plated. Pad surface
must be flat without excessive tin-lead build-up. (Layout views
are from SUB-CUB-D mounting side of board.)
Note: All hole size tolerances ±0.003" (0.08mm)
All other tolerances ±0.005" (0.13 mm)
MODEL NO. DESCRIPTION PART NUMBER
SCUB1 SUB-CUB 1 Display/Counter Module SCUB1000
SCUB2 SUB-CUB 2 Display/Counter Module SCUB2000
HWK 4 *SUB-CUB 2 Panel Bezel Kit with P.C. Board & Cable HWK40000
HWK 3 *SUB-CUB 2 Panel Bezel Kit w/o P.C. Board & Cable HWK30000
Complete Evaluation Kit With Batteries DMOSCB01
SUB-CUB Mounting P.C. Board DMOSCB02
*SUB-CUB Evaluation Kits Do Not Include SUB-CUB Dislay/Counter Module.
Order SUB-CUB 1 or 2 Module Separately.
ORDERING INFORMATION

J
896 www.redlion.net
OSUB-CUB2-8A - 8-DIGIT COMPONENT COUNTER
OLSI COUNTER CHIP AND 0.30"(7.62 mm) HIGH LCD DISPLAY
OSOLDERLESS, ELASTOMERIC INTERCONNECTS
(Snap Mounts Directly Onto P.C. Board)
OLATCHABLE DISPLAY WITH SELECTABLE LEADING ZERO
BLANKING
OCOUNT RATES TO 500 KHz
OLOW POWER, 30 μA AT 5 V (Typical)
* ACCESSORY HARDWARE AVAILABLE FOR PANEL MOUNTING SUB-CUB2-8A
DESCRIPTION
The SUB-CUB2-8A is a completely self-contained 8-digit LCD
counter/display module. The module can be treated as a component just like
any other I.C. The SUB-CUB2-8A can be used in simple high speed counting
applications as well as more complex applications such as frequency meters,
pulse width meters, etc.
Since it is a P.C. Board mounted component, the SUB-CUB2-8A is easily
integrated into applications where a readout of count, frequency, or time is
needed within a circuit enclosure. The SUB-CUB2-8A bezel and interface
board can be used to provide a convenient and economical panel mounted
display.
The SUB-CUB2-8A snap-mounts directly onto any 1/16" P.C. Board that
has been etched to provide a mating interconnect pad pattern and drilled for
two mounting holes and a polarizing “key” hole. Interconnections to the P.C.
Board as well as internal connections are made with elastomeric connectors
that provide an easy, corrosion-proof, and gas-tight interface for high
reliability.
SUB-CUB2-8A - 8-DIGIT COMPONENT COUNTER
MOUNTING & DIMENSIONS
Snap in mounting on the P.C. Board is facilitated by two, split, lock-ramp
pins which engage mounting holes drilled in the P.C. Board. The silicone
rubber elastomeric connectors compress to accommodate P.C. Board thickness
variations of ±0.005" (0.13 mm).
DIMENSIONS
In Inches (mm)
P.C. BOARD LAYOUT
P.C. Board pads may be gold or tin-lead plated. Pad
surface must be flat without excessive tin-lead build-up.
(Layout view is from the SUB-CUB2-8A mounting side
of the board.)
Pad area must be clean and free of contaminants so
that proper electrical contact can be made.
Note: All hole size ±0.003" (0.08 mm)
All other tolerances ±0.005" (0.13 mm)
MODEL NO. DESCRIPTION PART NUMBER
SCUB28A SUB-CUB2-8A Display/Counter Module SCUB28A0
HWK 28 *Panel Bezel Kit with P.C. Board & Cable HWK28000
HWK 3 *Panel Bezel Kit w/o P.C. Board & Cable HWK30000
*- Does not include SUB-CUB2-8A Display/Counter Module (Order SUB-CUB2-8A Separately).
ORDERING INFORMATION

J
8971-717-767-6511
U.S. PATENT NO. 4599600
OTRUE QUADRATURE WITH RESOLUTIONS UP TO 4 TIMES THE
ENCODED INPUT
OBI-DIRECTIONAL COUNTING WITH UP/DOWN CONTROL
OPOLARITY INDICATION
O3 POSITION DECIMAL POINT WITH SELECTABLE LEADING
ZERO BLANKING
OSOLDERLESS, ELASTOMERIC INTERCONNECTS (Snap mounts
directly onto P.C. board)
OULTRA LOW POWER, 15 μA AT 5.0 V (Typical)
DESCRIPTION
A completely self-contained counter/display module, the new SUB CUB D
can be treated as a component just like any other I.C. The SUB CUB D
provides all of the capabilities of the SUB CUB 2 with two additional modes
of operation. These are: Bi-directional counting with UP/DOWN control ...
ideal for length measurement, where a change in direction can occur; and
Quadrature counting (two pulse trains, shifted from one another by 90°) ...
commonly used for positioning applications. The SUB CUB D has the
additional capability of inhibiting counts on both inputs, used under certain
conditions to prevent false counts.
The SUB CUB D snap mounts directly onto a 1/16" thick P.C. Board which
has been etched with the proper mating pattern (shown below). Four
elastomeric connectors provide corrosion-proof, gas-tight contacts which
afford high reliability. In addition, the SUB CUB D is available with a bezel
mounting kit, which will allow the unit to be mounted as a panel instrument.
SUB CUB D - 8-DIGIT COMPONENT COUNTER WITH 6-DIGIT LCD DISPLAY
MOUNTING & DIMENSIONS
Snap-in mounting onto P.C. Board is facilitated by two, split, lock-ramp pins
which engage mounting holes drilled into the P.C. Board. The silicone rubber
elastomeric connectors compress to accommodate P.C. Board thickness
variation of ±0.005".
DIMENSIONS
In Inches (mm)
P.C. BOARD LAYOUT
P.C. Board pads may be gold or tin-lead plated. Pad
surface must be flat without excessive tin-lead build-up.
(Layout view is from SUB CUB D mounting side of board.)
Pad area must be clean and free of contaminants so that
proper electrical contact can be made.
Note: All hole size tolerances ±0.003" (0.08 mm)
All other tolerances ±0.005" (0.13 mm)
MODEL NO. DESCRIPTION PART NUMBER
SCUBD SUB CUB Display/Counter Module SCUBD200
HWK 3 *Panel Bezel Kit w/o P.C. Board & Cable HWK30000
HWK 6 *Panel Bezel Kit w/ P.C. Board & Cable HWK60000
Prototype P.C. Board DMOSCB04
*Does not include SUB CUB D Display/Counter Module.
Order SUB CUB D separately.
ORDERING INFORMATION

J
898 www.redlion.net
OLSI TIMER/COUNTER CHIP WITH CRYSTAL CONTROLLED
OSCILLATOR AND 0.35"(9 mm) HIGH LCD DISPLAY
OSNAP MOUNTS DIRECTLY ONTO P.C. BOARD
OSOLDERLESS, ELASTOMERIC INTERCONNECTS
OULTRA LOW POWER, 15 μA @ 5.0 VDC TYPICAL
OTIMES IN HOURS, 0.1 HOURS, 0.01 HOURS, AND 0.1 MINUTES
OCOUNTS IN X1, ÷10, ÷100, AND ÷1000
ODEBOUNCE SELECTABLE IN COUNTER MODES
OCOUNT RATES UP TO 500 KHz
OANNUNCIATOR TO INDICATE TIMER RUNNING
OACCEPTS AC VOLTAGE ON SIGNAL INPUT DIRECTLY
THROUGH INPUT RESISTOR
DESCRIPTION
As a completely self-contained timer/counter/display module, the SUB-
CUB-T can be treated as a component, just like any other I.C. The module
contains a low power integrated circuit (that performs all of the timing and
counting functions), a 32.768 KHz quartz crystal (which provides a stable time
reference) and a 5 1/2-digit LCD readout. The SUB-CUB-T has 4 Control
inputs which when set either high or low, determine the mode of operation.
The BP and WINK outputs can be used to select either no decimal point, or a
decimal point in the first or second position. The SIGNAL input is used to
activate the timer (when in the timing modes) or to increment the counter (when
in the counting modes).
The SUB-CUB-T is ideal for internal “on board” applications where a
readout of elapsed time or count is needed within a circuit enclosure for
maintenance, diagnostic, or other data readout requirements. It can also be
mounted with a convenient bezel kit to provide a very flexible and economical
panel instrument.
The SUB-CUB-T snap-mounts directly onto any 1/16" P.C. Board that has
been etched to provide a mating interconnect pad pattern with two mounting
holes and a polarizing “key” hole. Interconnections to the P.C. Board, as well
as the internal connections, are made with elastomeric connectors that provide
a corrosion-proof, gas-tight, interface contact for high reliability.
SUB-CUB-T - COMPLETE 5 1/2-DIGIT COMPONENT TIMER/COUNTER
MOUNTING & DIMENSIONS
Snap-in mounting onto P.C. Board is facilitated by two, split, lock-ramp pins
which engage mounting holes drilled into the P.C. Board. The silicone rubber
elastomeric connectors compress to accommodate P.C. Board thickness
variation of ±0.005".
DIMENSIONS
In Inches (mm)
P.C. BOARD LAYOUT
P.C. Board pads may be gold or tin-lead plated. Pad surface
must be flat without excessive tin-lead build-up. (Layout view
is from SUB-CUB-T mounting side of board.)
Pad area must be clean and free of contaminants so that
proper electrical contact can be made.
Note: All hole size tolerances ±0.003" ( 0.08 mm)
All other tolerances ±0.005" (0.13mm)
MODEL NO. DESCRIPTION PART NUMBER
SCUBT SUB-CUB Timer/Counter Module SCUBT200
HWK 3 *Panel Bezel Kit w/o P.C. Board & Cable HWK30000
HWK 6 *Panel Bezel Kit w/ P.C. Board & Cable HWK60000
Prototype P.C. Board DMOSCB04
*Does not include SUB-CUB-T Display/Timer Module.
Order SUB-CUB-T separately.
ORDERING INFORMATION

J
8991-717-767-6511
OLCD, POSITIVE REFLECTIVE OR NEGATIVE TRANSMISSIVE
WITH YELLOW/GREEN OR RED BACKLIGHTING
OCOUNTER, TIMER, & TACH ALL IN A SINGLE UNIT
ORATE MULTIPLIER/PRESCALER FROM 0.0001 TO 1.9999 IN
COUNT AND TACH MODES
O9 RANGES IN TIMER MODE
OSELECTABLE DECIMAL POINTS
O5 VDC POWERED
OPANEL MOUNT OR PC BOARD MOUNT
DESCRIPTION
The MDMU is a complete 6 digit Counter/Timer/Tach in a small panel or
printed circuit board mounted package. It is designed to operate from a 5 VDC
power supply. It has a 6 digit LCD, with 0.35" high digits, and 5 selectable
decimal points. In the timer modes, a flashing annunciator is supplied to
indicate that the signal input of the MDMU is active. The displays are
available in positive image reflective (black digits, reflective background) or
negative image transmissive (illuminated digits, dark background) with red or
yellow/green backlighting.
The MDMU has four Mode Select and three Decimal Point Select inputs
available for determining the basic operation. Certain functions can also be
selected through programming. In most applications, the MS and DP inputs
are hard wired to select the appropriate function (counter, timer and tach) and
decimal point position (counter and tach only). If changes to the MDMU
configuration are required, or if a rate multiplier/prescale is desired, the
PROGRAM input must be used to enter the appropriate information.
The integrated circuit is bonded directly to the printed circuit board and is
mechanically protected. Internal electrical interface connections use
elastomeric connectors to provide a corrosion resistant connection. This
reliable construction also reduces the space requirements.
MODEL MDMU - MINIATURE DISPLAY MODULE COUNTER/TIMER/TACH
DIMENSIONS Note: Recommended minimum clearance behind the panel for mounting clip installation is 2.25" (57.2)W x 1.5" (38.1)H
In inches (mm)
PANEL MOUNT UNIT PANEL CUT-OUT
PRINTED CIRCUIT BOARD MOUNT UNIT RECOMMENDED PCB LAYOUT
MODEL NO DESCRIPTION PART NUMBER
Panel Mount W/Reflective Display MDMU0000
Panel Mount W/Yel-Grn Backlighting MDMU0010
Panel Mount W/Red Backlighting MDMU0020
PC Board Mount W/Reflective Display MDMU0100
PC Board Mount W/Yel-Grn Backlighting MDMU0110
MDMU
PC Board Mount W/Red Backlighting MDMU0120
HWK7 MDM Cable Assembly HWK70000
ORDERING INFORMATION

J
900 www.redlion.net
OLCD, POSITIVE REFLECTIVE OR NEGATIVE TRANSMISSIVE
WITH YELLOW/GREEN OR RED BACKLIGHTING
O1 pA INPUT LEAKAGE CURRENT TYPICAL
O200 mV FULL SCALE
OAUTOMATIC ZEROING CIRCUIT
OSELECTABLE DECIMAL POINTS
OPOLARITY INDICATION
O5 VDC POWERED
OFIVE SELECTABLE DISPLAY ANNUNCIATORS
OPANEL MOUNT OR PC BOARD MOUNT
DESCRIPTION
The MDMV is a small panel or printed circuit board mount digital
voltmeter. With advantages of accuracy, size, and ease of installation, it is an
ideal replacement for analog meters. The unit has a 3½-digit LCD display with
0.4" (10.2 mm) high digits. The displays are available in positive image
reflective (black digits, reflective background) or negative image transmissive
(illuminated digits, dark background) with red or yellow/green backlighting.
The integrated circuit is bonded directly to the printed circuit board and is
mechanically protected. Internal electrical interface connections use
elastomeric connectors to provide a corrosion resistant connection. This
reliable construction also reduces the space requirements.
The MDMV module is designed to operate from a +5 VDC supply. The
module measures input voltages from 0 to ±199.9 mV DC relative to the
supply common.
Auto-zeroing is provided by the module, therefore no zero adjustment is
required. If the input signal exceeds the input range, the unit display will
indicate an overrange condition.
The module has three selectable decimal point positions and five selectable
annunciators (BAT,V,A,m,μ). The BAT (Battery) annunciator is used to
indicate a low battery condition, while the others are used to indicate Volts and
Amperes.
MODEL MDMV - MINIATURE DISPLAY MODULE D.C. VOLTMETER
DIMENSIONS
In inches (mm)
Note: Recommended minimum clearance (behind the panel) for mounting clip installation is 2.25" (57.2)W x 1.5" (38.1)H.
PANEL MOUNT UNIT PANEL CUT-OUT
PRINTED CIRCUIT BOARD MOUNT UNIT RECOMMENDED PCB LAYOUT
ORDERING INFORMATION
HWK70000MDM Cable AssemblyHWK7
MDMV0120PC Board Mount W/Red Backlighting
MDMV0110PC Board Mount W/Yel-Grn Backlighting
MDMV0020Panel Mount W/Red Backlighting
MDMV0010Panel Mount W/Yel-Grn Backlighting
MDMV
MDMV0100PC Board Mount W/Reflective Display
MDMV0000Panel Mount W/Reflective Display
PART NUMBERDESCRIPTIONMODEL NO.

1-717-767-6511
ACCESSORIES
K
The Trusted Source for
Innovative Control
Solutions
901

Page 907 Page 909 Page 913 Page 917
SIGNAL
CONVERSION
K
902 www.redlion.net
QUICK Specs
POWER SUPPLIES
N/A N/A N/A
4 to 270 VAC (VCM)
115 VAC (TCM)
3 to 28 VDC (LCM)
Input
DIN Rail Mounted, 1 Amp,
2 Amp and 4 Amp
Plug-in Socket, 12 VDC and
24 VDC Micro-line Power Supply Signal Converter Modules
24 VDC @ 1, 2
and 4 Amps
Unregulated
12 VDC (APS)
Unregulated 24
VDC with 20 mA
Current Sources
(APSIS)
12 VDC (MLPS1)
24 VDC (MLPS2)
NPN O. C. (VCM, TCM)
+3 V Bi-Polar (LCM)
General Use General Use
For use with CUB4, CUB5,
and DT8 Models,
Model Dependent
N/A
85 to 264 VAC
90 to 350 VDC
115 VAC
230 VAC 85 to 250 VAC Powered from signal (VCM, TCM)
5 to 28 VDC (LCM)
99 mm (H) x 115 mm (D)
23 mm (W) (1 Amp)
45 mm (W) (2 Amp)
68 mm (W) (4 Amp)
90 mm (H) x 61 mm
(W) x 51 mm (D)
w/socket
47 mm (H) x 68 mm (W)
12 mm (H) x 18 mm (W)
x 39 mm (D)
6" leads
Recommended
Application
Power
Source
Dimensions
Output
Description
DIN RAIL APS MLPS VCM / TCM / LCM
Accessories
Page Number

Page 920 Page 922 Page 928 Page 930/936
9031-717-767-6511
K
RELAYS
Control Rating
24 VDC
Control Rating
4 to 28 VDC,
Model Dependent
N/A N/A
Input
DIN Rail Mounted Relay Solid State Relays Label Kits for PAX Analog, PAX
Lite, and LPAX Displays
USB Programming Cards for
CUB5 and PAX Series
1Output Rating 250 VAC
Output Rating
0 to 45 Amp or
48 to 660 VAC,
Model Dependent
N/A N/A
N/A
Allows low level DC control
signal to switch high level AC
current or voltage devices
Display engineering units on
specific meters Programming only
N/A N/A N/A N/A
80 mm (H) x 6 mm (W)
x 94 mm (D) Model Dependent N/A N/A
Recommended
Application
Power
Source
Dimensions
Output
Description
RSRLY RLY USB PROGRAMMING
LABEL KITS OPTION MODULES
Accessories
QUICK Specs
Page Number
CUB5
PAX

Page 932 Page 938 Page 944 Page 948
Page Number
K
904 www.redlion.net
QUICK Specs
OPTION MODULES
N/A N/A N/A N/A
Input
CUB5 Comms Module,
RS485
PAX Comms Module,
RS232/485
PAX Comms Module,
DeviceNet
PAX Comms Module,
Modbus
RS485 RS232/485 DeviceNet Modbus
Provides communication
from the CUB5 Meters
Provides communication
from the PAX Meters
Provides communication
from the PAX Meters
Provides communication
from the PAX Meters
N/A N/A N/A N/A
N/A N/A N/A N/A
Recommended
Application
Power
Source
Dimensions
Output
Description
CUB5 COMMS PAX COMMS PAX DEVICENET PAX MODBUS
Accessories

Page 954 Page 958 Page 962
9051-717-767-6511
K
N/A N/A N/A
Input
PAX Comms Module,
Profibus PAX Setpoint Module PAX Analog Output Module
Profibus
Dual Form C
Quad Form A
Quad Sinking
Quad Sourcing
4 to 20 mA or
0 to 10 VDC
Provides communication
from the PAX Meters
Provides setpoint outputs
from the PAX Meters
Provides analog retransmitted
output from the PAX Meters
N/A N/A N/A
N/A N/A N/A
Recommended
Application
Power
Source
Dimensions
Output
Description
PAX PROFIBUS PAX SETPOINT PAX ANALOG
OPTION MODULES
Accessories
QUICK Specs
Page Number

K
906 www.redlion.net
This page intentionally left blank.

K
9071-717-767-6511
DESCRIPTION
The compact PSDR power supplies are industrial input voltage supplies with
primary switched-mode regulator technology. They feature low output ripple
and adjusted output voltage from 22.5 to 28.5 VDC. The output is electronically
protected against overloads and short circuits.
The modules snap onto standard 35 mm flat DIN rails and use removable
terminal blocks for easy wiring.
SPECIFICATIONS
1. POWER REQUIREMENTS:
Nominal Input Voltage: 100 to 240 VAC
Input Voltage Range: 85 to 264 VAC or 90 to 350 VDC
Current Consumption at nominal input voltage:
PSDR0100: 0.5 A to 0.2 A @ 100 to 240 VAC, 0.4 to 0.1 A @ 90 to 350 VDC
PSDR0200: 0.82 A to 0.33 A @ 100 to 240 VAC, 0.65 to 0.19 A @ 90 to 350 VDC
PSDR0400: 1.8 A to 0.7 A @ 100 to 240 VAC, 1.3 to 0.4 A @ 90 to 350 VDC
2. FREQUENCY: 50 to 60 Hz
3. INPUT RECOMMENDED BACKUP FUSE:
Power Circuit Breaker: 6 A or 10 A
Characteristic: B (EN 60898)
4. SURGE VOLTAGE PROTECTION: Varistor
5. POWER OUTPUT: Nominal value of 24 VDC ±1%. Adjustable from 22.5
to 28.5 VDC via potentiometer
6. EFFICIENCY AT 230 VAC AND NOMINAL VALUES: > 80 %
7. ENVIRONMENTAL CONDITIONS:
Operating Temperature Range: -25 to 60°C
Storage Temperature: -40 to 85°C
Humidity, no moisture condensation: 95 % at 25°C
Vibration in acc. with IEC 68-2-6: < 15 Hz, amplitude ±2.5 mm;
15 Hz - 150 Hz, 2.3 g
Shock in all directions acc. with IEC 68-2-27: 30 g
Contamination in acc. with EN 50178: Degree of pollution 2
8. STANDARDS AND CERTIFICATIONS:
EN 55011 corresponds to CISPR11 / EN 55022 corresponds to CISPR22
EN 61000 corresponds to IEC 1000
9. ISOLATION VOLTAGE: Input/Output 3 kVAC
10. INSTALLATION POSITION: On horizontal mounting rail according to
EN 50022-35
11. CONNECTIONS: 24 to 14 AWG max. Torque 4.5 to 5.3 inch-lbs
(0.5-0.6 Nm).
12. MOUNTING: Standard DIN rail top hat (T) profile rail according to
EN50022 - 35 X 7.5 and 35 X 15. Can be mounted in rows with vertical
Spacing > 5 cm or horizontally with no space.
13. CONSTRUCTION: Case body is black, high impact plastic. IP20 touch
safe. Protection Class II.
14. MTBF (Mean Time Between Failure): >500000 h in acc. with IEC 1709 (SN
29500)
15. WEIGHT:
PSDR0100: 7.4 oz. (210 g)
PSDR0200: 8.8 oz. (250 g)
PSDR0400: 14.1 oz. (400 g)
MODEL PSDR - 24 V POWER SUPPLIES @ 1, 2, OR 4 A
DIMENSIONS In inches (mm)
Industrial regulating devices
Electrical Safety (of information
technology equipment)
EN 50178 / VDE 0160
Limitation of output power
Safe isolation
NEC Class 2
VDE 0100-410
Protection against electric shock DIN VDE 0106-101
1) Criterion A: Normal operating behavior within the defined limits.
2) Criterion B: Temporary impairment to operational behavior, that is
corrected by the device itself.
3) Symmetrical: Conductor to conductor.
4) Asymmetrical: Conductor to ground.
5) Class B: Area of application industry and residential.
EN 61000-4-11 2)
I/O/S: Level 3
Frequency/Uo: 0.15-80 MHz / 10 V
Discharge of static electricity (ESD)
In conformance with EMC guideline 89/336/EEC
and low-voltage directive 73/23/EEC
Electromagnetic HF field
EN 55011 (EN 55022) Class B 5)
EN 55011 (EN 55022) Class B 5)
ENV 50204Simulation mobile phones
Emitted radio interference
Radio interference voltage
Input: see mains buffering
> 20 ms
Voltage dips
EN 61000-4-6 1)
Conducted disturbance
EN 61000-4-5 2)
Surge voltage capacities (Surge)
EN 61000-4-4 2)
Fast transients (Burst)
EN 61000-4-3 1)
Housing > Level 3
Contact discharge: 8 kV
Discharge in air: 8 kV
EN 61000-4-2 2)
Frequency: 900 MHz, 1800 MHz
Field intensity: 20 V/m
Noise emission according to EN 50081-2
EMC (Electromagnetic compatibility)
Immunity in accordance with EN 61000-6-2
Input: 4 kV (Level 4) 4)
Output: 2 kV (Level 3) 4)
Signal: 1 kV (Level 2) 4)
Housing Level 3
Frequency/Field intensity: 80-1000
MHz / 10 V/m
Input: 4 kV 4) / 2 kV 4) (Level 4)
Output: 0.5 kV 4) / 0.5 kV 3) (Level 1)
Signal: 0.5 kV 4) (Level 1)
EN 60950 / VDE 0805
MODEL C
PSDR0100
PSDR0200 1.77 (45)
PSDR0400 2.66 (67.5)
0.87 (22.5)
UL Recognized UL 60 950
UL 508 listed
C
C
US
US
UL
R
LISTED
Electronic equipment for use in
electrical power installations
(surge voltage category III)

K
908 www.redlion.net
CONNECTION AND OPERATION
INSTRUCTIONS
PROTECTION
The device must be installed in accordance with the specifications of EN
60950.
It must be possible to switch off the device using a suitable disconnecting
device outside the power supply. For example, primary side line protection
could be used.
In case of DC applications it is necessary to connect in series an adequate fuse.
RAIL MOUNTING
The power supply unit can be snapped onto all mounting rails in accordance
with EN 50022-35. Installation should be made horizontally (input terminal
blocks below).
CABLE CONNECTION
The device is equipped with COMBICON plug connectors.
This easy-to assemble connection method allows devices to be exchanged
easily and the electrical connection to be visibly isolated.
Connecting Cables:
Cable cross sections from 0.2 to 2.5 mm2rigid (solid)/flexible (stranded)
(AWG 24-14) may be used.
To maintain UL, use copper cable rated for an operating temperature of
75°C/170°F.
For Reliable And Touch-proof Contacts:
Strip the connection ends (7 mm - See Figure).
INPUT
The input connection is made by the screw
connections “L(+)” and “N(-)” (torque 0.5 Nm) on the
COMBICON plug connection.
For device protection, there is an internal fuse.
Additional device protection is not necessary.
Recommended backup fuses are power circuit-
breakers 6 A or 10 A, charactistic B (or identical
function). In DC applications, a suitable backup fuse
must be wired in.
If the internal fuse is triggered, there is most
probably a malfunction in the device. In this
case, the device must be inspected in the
factory!
OUTPUT
The 24 VDC connection is made by the screw connections “+” and
“-” (torque 0.5 Nm) on the COMBICON plug connection. At the time of
delivery, the output voltage is 24 VDC. The output voltage can be set from 22.5
to 28.5 VDC on the potentiometer.
The device is electronically protected against short circuits and idling. In the
event of an error, the output voltage is limited to max 35 VDC.
Function Monitoring
For function monitoring, there is the active DC OK switching output and the
DC OK LED.
The 24 VDC signal is measured between the “DC OK” and “-” connection
terminal blocks and can be loaded with 20 mA maximum. This signal output
indicates that the output voltage has fallen below 21.5 VDC when “active high”
changes to “low”.
The DC OK signal is isolated from the power output.
Output Characteristic Curve
The device functions following the U-I characteristic curve. Under load, the
operating point follows this curve. In the event of a short circuit or overload, the
output current is limited to IBOOST. The secondary voltage is reduced until the
short circuit on the secondary side has been remedied.
Thermal Behavior
In the case of ambient temperatures above +60ºC, the output capacity has to
be reduced by 2.5% per Kelvin increase in temperature.
From +70°C or a thermal overload, the device reduces the output power for
its own protection, and returns to normal operation when it has cooled down.
Caution: Danger! Never work on live equipment!
Caution: When the device is opened, a dangerous voltage may remain
at the electrolytic capacitors for up to 2 minutes after shutdown!
The installation must be performed by a specialist in accordance with
the requirements of EN 60950.
For vertical installations we recommend a minimum spacing of 5 cm
(1.97 in.) between other modules and this power supply to ensure
sufficient convection.
No minimum spacing is required for horizontal alignment.
The mains feed line must have an appropriate fixing or strain relief
outside of the device.
The supply-side installation and the connection via screw terminal
blocks must be done in a way that ensures protection against electric
shock.
ORDERING INFORMATION
STATUS 1 STATUS 2
Green LED “ DC OK” on off
Active DC OK switching
output
U = +24 V
(in reference to “-”)
U = 0 V
(in reference to “-”)
Status
Normal operation of the
power supply.
UOUT > 21.5 V
UOUT <21.5 V
• Secondary consumer
short-circuit or overload
• No mains voltage or
device faulty
U
[V]
U 24
60°C 40°C
II[A]
OUT
N
IOUT
BOOST
N
OUTPUT
PSDR1 24 VDC @ 1A PSDR0100
PSDR2 24 VDC @ 2A PSDR0200
PSDR4 24 VDC @ 4A PSDR0400
PART NUMBERMODEL NO.
11.3
PSDR0200 2 4
PSDR0400 4 6
PSDR0100
IBOOST
IN

K
9091-717-767-6511
PROVIDES . . .
+12 VDC “HELPER” SUPPLY FOR LOAD SHARING WITH
UNREGULATED COUNTER SYSTEMS WITH UNUSUAL SENSOR
AND ACCESSORY LOADS, OR . . .
“STAND-ALONE” APPLICATIONS FOR POWERING SENSORS
AND ACCESSORIES
MODEL APS - OCTAL PLUG-IN ACCESSORY POWER SUPPLY
TYPICAL CONNECTION DIAGRAM
DIMENSIONS In inches (mm)
OUTPUT VOLTS/CURRENT REGULATION CURVE
ORDERING INFORMATION
DESCRIPTION
The Model APS is an unregulated +12 VDC supply designed to load share
when connected in parallel with internal power supplies of many Red Lion
Controls Counters and Rate Indicators. It can also be used as a general purpose
“Stand-alone” power supply to power other control circuits, sensors and
accessories. The APS is furnished for 115 VAC or 230 VAC, ±10%, 50/60 Hz
primary supply. Operating temperature range is -20° to +50°C. Output current
is per regulation curve.
MODEL NO. DESCRIPTION PART NUMBER
SKT1
APS01
Base Mount 8-pin Octal Socket
115 VAC Accessory Power Supply
SKT10000
APS01000
--
APS02
DIN Rail 8-pin Socket
230 VAC Accessory Power Supply
SKTDIN00
APS02000

K
910 www.redlion.net
These industrial relays have a mechanical life
expectancy in excess of 10 million cycles, and are both
UL and CSA recognized.
RELAY SPECIFICATIONS
COIL: 12 VDC Coil - 120 Ω±10%,
Rated +12 VDC @ 100 mA.
115 VAC Coil - 2250 Ω±10%,
Rated 115 VAC @ 52 mA.
CONTACTS: 10 A @ 115 and 230 VAC
(1/6 HP @ 115 V, 1/3 HP @ 230 VAC)
OPERATING TIMES:
Energize - 30 msec max.
De-energize - 30 msec max.
Operating times do not include bounce time
(approx. 3 msec).
OPERATING TEMPERATURE RANGE:
-45° to +60°C
ELECTRICAL LIFE: In excess of 100,000 operations
@ rated load.
WEIGHT: 3 oz (85.1 g)
Mating sockets sold separately. See Ordering Information.
PLUG-IN RELAYS PROVIDED FOR
EASY SERVICING & MAINTENANCE
ACCESSORY PLUG-IN RELAY
CONTACTS SHOWN IN
DE-ENERGIZEDPOSITION
ORDERING INFORMATION
DESCRIPTION COIL VOLTAGE PART NUMBER
DPDT Plug-in Relay 12 VDC RLY10000
115 VAC RLY30000
Base Mount 8-pin Octal Socket SKT10000
DIN Rail 8-pin Socket SKTDIN00

K
9111-717-767-6511
PROVIDES...
24 VDC UNREGULATED “HELPER” SUPPLY FOR LOAD
SHARING WITH OTHER 24 VOLT SYSTEMS WITH UNUSUAL
SENSOR AND ACCESSORY LOADS OR...
“STAND-ALONE” APPLICATIONS FOR POWERING +24 VDC
SENSORS AND ACCESSORIES OR...
TWO 20 mA CURRENT SOURCES, EACH CAPABLE OF
SUPPLYING 20 mA OF CURRENT FOR SERIAL
COMMUNICATION LOOPS AND POWERING UP TO 16 UNITS
PER LOOP.
DESCRIPTION
The Model APSIS is a convenient plug-in unregulated +24 VDC power
supply designed to “load share” when connected in parallel with other +24
VDC unregulated systems with unusual power requirements due to sensor or
accessory loading (see Fig.1). It can also be used as a general purpose stand-
alone supply to power +24 VDC control circuits, sensors and accessories (see
Fig.2). In addition, two 20 mA Current Source outputs are available, each
capable of powering up to 16 Serial Communications units (see Fig.3). The
APSIS is available in 115 and 230 VAC ±10%, 50/60 Hz. primary supply (see
Ordering Information). Operating temperature range is -20°C to +50°C.
SPECIFICATIONS
1. POWER SOURCE: 2 versions, 115 VAC or 230 VAC ±10%, 50/60 Hz., 11
VA max. (see Ordering Information).
2. POWER OUTPUT: +24 VDC unregulated @ 200 mA max. current*,
Ripple = 1.5 V P-P max.
3. OUTPUT: Two 20 mA current sources, each capable of supplying 20 mA of
current for serial communication loops and powering up to 16 units per loop.
4. OPERATING TEMPERATURE: -20°C to +50°C (-4°F to +122°F)
*Maximum available output current derates to 175 mA with 1 source active
and 150 mA max. with both sources active.
MODEL APSIS - Octal Plug-in Accessory Power Supply With 20 mA Current Sources
TYPICAL LOAD SHARING CONNECTION DIAGRAM DIMENSIONS In inches (mm)
Mating
Sockets
Sold
Separately
(See
Ordering
Information)
FIGURE 1
TEMPERATURE MONITORING SYSTEM
A temperature monitoring process requires both remote
and control room indicators and datalogging capabilities.
An RTD (Resistance Temperature Detector) to 4 to 20 mA
Transmitter, provides a proportional 4 to 20 mA output
from the RTD input. Two Red Lion Controls “Loop
Powered Process Indicators” (Model LPPI) are installed
in series in the “Loop” and scaled to provide Local and
Remote temperature displays. A Datalogger is also placed
in the “Loop” to provide a hard-copy of process
temperatures. Each device in the “Loop” has an associated
“voltage drop” as follows: RTD Transmitter = 9 VDC
drop; LPPI = 3 VDC x 2 units = 6 VDC drop; Datalogger
= 5 VDC drop. The total voltage drops in the “Loop” =
20 VDC. Therefore, RLC’s Model APSIS, with its +24
VDC Supply, is used to power this process “Loop”.FIGURE 2

K
912 www.redlion.net
PROCESS MONITORING
SYSTEM
8 Apollo Thermocouples (APLTC) and 8
GEMINIs, all with isolated 20 mA Current
Loop Serial Communications, monitor and
control processes within a plant. All units,
which are located in different areas of the
plant, are tied together in series in two
“Loops” (one Transmit Tx, the other
Receive Rx) and are connected to a Central
Computer located in another area of the
plant. Since there are more than 7, and no
more than 16 units in the “Loop”, the APSIS
+20 mA Current Source Outputs are used to
power each “Loop”. (Both Apollo
Thermocouple and Gemini units can power
up to 7 units in a “Loop” when using their
internal 20 mA sources. However, their
sources may not be tied together to power
more than 7 units.) Each unit is assigned a
different address number and the same Baud
rate (see appropriate APLTC or Gemini data
sheet). An application program is written
which allows the Central Computer to send
and retreive data from any APLTC or
Gemini.
FIGURE 3
OUTPUT VOLTS/CURRENT
*Unregulated output +(2) 20 mA current
sources (if used).
ORDERING INFORMATION
PART NUMBERS FOR
MODEL NO. DESCRIPTION AVAILABLE SUPPLY VOLTAGES
230 VAC 115 VAC
APSIS Accessory Power Supply- Current Source APSIS010 APSIS000
Base Mount, 8-Pin Octal Socket SKT10000
Din Rail Mount, 8-Pin Octal Socket SKTDIN00

K
9131-717-767-6511
PROVIDES POWER FOR THE MICRO-LINE SERIES
MLPS1: 12 VDC OUTPUT @ 400 mA
MLPS2: 24 VDC OUTPUT @ 200 mA
EASILY ATTACHED TO BACK OF DT8, CUB4 AND CUB5
DESCRIPTION
The Model MLPS power supplies are designed to attach to the rear of the
Micro-Line Series. The MLPS1 provides a 12 VDC output, while the MLPS2
provides a 24 VDC output. Both supplies can be powered from an 85-250 VAC
source.
Caution: The maximum output current of the MLPS1 is 400 mA and the MLPS2
is 200 mA. Check the specifications of the specific counter(s)/indicators(s)
and sensors(s) being used to ensure that total current requirements do not
exceed the respective values of the power supplies.
SAFETY SUMMARY
All safety related regulations, local codes and instructions that appear in the
manual or on equipment must be observed to ensure personal safety and to
prevent damage to either the instrument or equipment connected to it. If
equipment is used in a manner not specified by the manufacturer, the protection
provided by the equipment may be impaired.
MODEL MLPS1 and MLPS2 - MICRO-LINE POWER SUPPLIES
DIMENSIONS In inches (mm)
SPECIFICATIONS
1. POWER REQUIREMENTS: 85-250 VAC, 50/60 Hz, 14 VA.
2. POWER OUTPUT:
MLPS1: +16 VDC max @ 4 mA; 11.5 VDC min @ 400 mA
MLPS2: +26 VDC max @ 0 mA; 22 VDC min @ 200 mA
3. ENVIRONMENTAL CONDITIONS:
Operating Temperature: 0 to 60°C
Storage Temperature: -30 to 75°C
Operating and Storage Humidity: 85% max. (non-condensing) from 0°C
to 50°C.
Altitude: Up to 2000 meters
4. CERTIFICATIONS AND COMPLIANCES:
SAFETY
UL Recognized Component, File # E179259, UL 61010-1, CSA C22.2
No. 61010-1
Recognized to U.S. and Canadian requirements under the Component
Recognition Program of Underwriters Laboratories, Inc.
Output meets Class 2 power requirements per UL 1310.
IECEE CB Scheme Test Certificate # US/8946/UL,
CB Scheme Test Report # E179259-V2-S1
Issued by Underwriters Laboratories, Inc.
IEC 61010-1, EN 61010-1: Safety requirements for electrical
equipment for measurement, control, and laboratory use, Part 1.
ELECTROMAGNETIC COMPATIBILITY
Emissions and Immunity to EN 61326: Electrical Equipment for
Measurement, Control and Laboratory use.
Notes:
1. Criterion A: Normal operation within specified limits.
2. Criterion B: Temporary loss of performance from which the unit self-
recovers.
5. CONSTRUCTION: High impact black plastic. Mounting hardware
included. Installation Category II, Pollution Degree 2.
6. CONNECTION: Two position terminal block which accepts one 14 AWG
wire (torque terminal screws to 5 inch-lbs. [0.56 N-m]).
7. WEIGHT: 2 oz (47 g)
MODEL NO. DESCRIPTION PART NUMBER
MLPS2
MLPS1
+24 VDC Micro Line/Sensor Power Supply
+12 VDC Micro Line/Sensor Power Supply
MLPS2000
MLPS1000
ORDERING INFORMATION
UL Recognized Component,
File # E179259
Class BEN 55011
Emissions:
0.5 cycle
Criterion A
3 V/rms
Criterion A
EN 61000-4-6
EN 61000-4-11
RF conducted interference
Voltage dip/interruptions
1 kV L-L,
Criterion BEN 61000-4-5Surge
1 kV signal
2 kV power
Criterion AEN 61000-4-4Fast transients (burst)
1 kV signal
2 kV L&N-E power
10 V/m
Criterion AEN 61000-4-3Electromagnetic RF fields
8 kV air discharge
4 kV contact discharge
Criterion AEN 61000-4-2Electrostatic discharge
Immunity to Industrial Locations:
CAUTION: Risk of Danger.
Read complete instructions prior to
installation and operation of the unit.
CAUTION: Risk of electric shock.

K
914 www.redlion.net
INSTALLATION ENVIRONMENT
The unit should be installed in a location that does not exceed the
maximum operating temperature and provides good air circulation. Placing
the unit near devices that generate excessive heat should be avoided.
Installation Procedure
The MLPS is shipped with all the necessary hardware to mount to the rear
of an installed Micro-Line unit. Refer to the instructions that correspond to
your Micro-Line unit for proper installation.
TROUBLESHOOTING
For further technical assistance, contact technical support at the appropriate
company numbers listed.
CUB4, DT8
The user must remove the common and V+ screw
terminals on the rear of the Micro-Line unit. Install
the 1/4" hex drive stand-offs into the common
and V+ terminals. The MLPS is then mounted
to the stand-offs using the screw
terminals and square washers. AC
power can then be connected to the
terminal block of the MLPS.
CUB5
The user must remove the common and V+
screw terminals on the rear of the Micro-Line
unit. Install the 3/16" hex drive stand-offs into
the common and V+ terminals. The MLPS is
then mounted to the stand-offs using the
supplied screws and square washers. AC
power can then be connected to the
terminal block of the MLPS.

K
9151-717-767-6511
ALLOWS CUB COUNTERS & DITAK
TACHOMETERS TO OPERATE WITH:
2-WIRE PROXIMITY SENSORS,
ROTARY PULSE GENERATORS,
LOGIC MAGNETIC PICKUPS,
MEASURING WHEEL LENGTH SENSORS,
CLOCK OSCILLATOR MODULES,
-- AND MANY OTHER SENSORS, CIRCUITS AND
ACCESSORIES
*PSMA intended for use with CUB 1, 2, and 7 Counters and
Ditak 8 and 9 Tachometers.
DESCRIPTION
Cub Counters and Ditak Tachometers are basically self-powered devices and
do not have built-in capability for powering electronic sensors or accepting high
level sensor outputs. The PSMA provides a convenient plug-in answer to those
applications requiring electronic sensors or accessories for pulse input to Cub
Counters or Ditak Tachometers.
The PSMA is available in 115 VAC and 230 VAC primary power input
versions, and delivers regulated D.C. voltage for sensors and accessories. The
signal conditioning amplifier can accept NPN or PNP Open Collector Inputs, or
2-Wire Proximity Sensor Inputs.
The signal conditioning amplifier supplies two separate outputs, one for
direct drive to the H.S. Input of Cub Counters, and the other for direct drive
input to the PSM Input of the Ditak. A ”pulse stretcher” is used in the circuit
that provides the output drive to Cub Counters (Terminal 4). This stretcher
allows the PSM to accept 50 μsec input pulses, standard on some Red Lion
Controls’ sensors and accessories, and expand it to the 100 μsec pulse, as
required by the Cub Counters. The Ditak output (Terminal 8) is not pulse
stretched, allowing this output to continue functioning to the full 10 KHz limit
of the Ditak.
SPECIFICATIONS
1. POWER SOURCE: 2 versions, for 115 VAC ±10% 50/6 0Hz, or 230 VAC
±10% 50/60 Hz. (See Ordering Information.)
2. POWER OUTPUT TO SENSORS OR ACCESSORIES: 12 VDC
regulated ±5%, 100 mA max.
3. INPUT SIGNAL: (Terminal 3) NPN Open Collector (sink), PNP Open
Collector (source), or 2-wire Input. Built-in 3.3 K resistor (Terminal 5) can
be jumper connected for pull-up, pull-down, or left unconnected as required.
Input Schmidt trigger levels as shown on BLOCK DIAGRAM.
4. OUTPUTS: (Terminal 4) Bi-polar drive to H.S. Input of Cub Counters
supplies 100 μsec negative going logic pulse (switches from +3 to 0 volts) in
response to a trailing (negative going) edge of the input pulse. This output
will drive up to 3 Cub Counters in parallel.
(Terminal 8) NPN Loaded Collector to drive the input of Ditaks. The output
voltage on this terminal is in phase with the input signal going into Terminal
3. The high level of this voltage will be clamped to 6.2V by the zener diode
in the Ditak. This output can drive up to 3 Ditak units.
5. OPERATING FREQUENCY:
0 to 5 KHz with Cub Counters;
0 to 10 KHz with Ditaks.
MODEL PSMA POWER SUPPLY & INTERFACE MODULE
PROVIDES POWER FOR SENSORS & ACCESSORIES WITH SIGNAL
CONDITIONING FOR INPUT TO CUB COUNTERS*& DITAK TACHOMETERS*
BLOCK DIAGRAM (TOP VIEW OF SOCKET)
NOTES
1. Inputs and Outputs are referenced to COMMON, on Terminal 2.
2. This Power Supply is regulated and cannot be parallel connected with
+12 V outputs from other Red Lion Controls counters or tachometers.

K
916 www.redlion.net
ORDERING INFORMATION
DIMENSIONS In inches (mm)
NPN OPEN COLLECTOR SINK INPUT INPUT CONNECTION TABLE FOR RED LION CONTROLS’ SENSORS
PNP OPEN COLLECTOR SOURCE INPUT
* New PSAC: Brown = +12 V, Black = Input, Blue = Common
2-WIRE PROXIMITY SENSOR INPUT OUTPUT CONNECTIONS TO CUB COUNTERS & DITAK TACHOMETERS
GENERAL CONNECTION DIAGRAMS
PSMA TERMINALS 1 (+12V) 2 (COMM.) 3 (INPUT)
SENSOR OR ACCESSORY CONNECT
TO
CONNECT
TO
CONNECT
TO JUMPER
NPN 0.C. OUTPUTS
LMPC LOGIC MAG. PICKUP
PSAC PROXIMITY SENSOR *
LSC LENGTH SENSOR
RPGC ROTARY PULSE GEN.
ASTC INLINE PREAMPLIFIER
PSA6B, PSA7B, PSA8B
COS1 CLOCK OSCILLATOR
BLACK
TERM #2
WHITE
TERM #7/8
JUMPER
TERM 5
TO TERM 1
ON PSMA
SOCKET
NPN OUTPUT W/COLLECTOR
LOADED TO +12V IN SENSOR
RPGB ROTARY PULSE GEN.
RPGH ROTARY PULSE GEN.
RED BLACK WHITE
NO
JUMPER
CONN.
2-WIRE PROXIMITY SENSORS
PSA-1 or PSA-2
BLACK
OR
BROWN
NO CONN.
TO SENSOR BLUE
JUMPER 5
TO 2 ON
PSMA SKT
RED
TERM #1
Mating Sockets
Sold Separately
(See Ordering
Information Below)
DESCRIPTION PART NUMBER
PSMA1000
PSMA PSMA2000
-Base Mount, 8-Pin Octal Socket SKT10000
-Din Rail Mount, 8-Pin Octal Socket SKTDIN00
MODEL NO.
Power Supply & Interface Module (less socket), 115 VAC
Power Supply & Interface Module (less socket), 230 VAC

K
9171-717-767-6511
VCM - VOLTAGE CONVERTER MODULES
Converts AC/DC voltages to acceptable signal inputs for many RLC counters and
accessories, provides input/output isolation.
TCM - TRIAC CONVERTER MODULE
Accepts unloaded, high off-state leakage triac output from sensors and
programmable controllers.
LCM - LOGIC CONVERTER MODULE
For interface with CMOS, TTL, and other logic circuits to +28 VDC, at speeds to
5000 cps. Allows Cub Counters to share sensor outputs with other series
counters.
These miniature sized modules are completely encapsulated in PVC, which
provides protection against oil, water, dirt, and mechanical damage. They can
be quickly and easily mounted to the back of counter enclosures or to any
nearby panel surface by a self-stick adhesive pad.
VCM - VOLTAGE CONVERTER MODULES
VCM’s are provided in 2 series, VCM [A-D] and VCM [E-H], to increase
the application flexibility of many RLC Counters and Accessories.
VCM [A-D]
These modules provide a convenient way to adapt CUB Counters* to most
any machine control voltage signal. They also make it easy to upgrade electro-
mechanical counter installations with CUB Counters.
They are available in four overlapping input voltage ranges that cover the
spectrum from 4-270 V (See VCM [A-D] Ordering Information for specific
input voltage ranges). The non-polarized input of these modules will accept
A.C. (50/60 Hz) or D.C. control voltages and at count speeds up to 30 cps. The
output is an NPN Open-Collector Transistor compatible with either the L.S.
Count or Remote Reset inputs of Cub Counters. Electrical isolation between
input and output is achieved by means of an internal opto-isolator.
* VCM [A-D] intended for use with Cub 1, 2, 4, and 7 Counters and Cub
5 with DC Voltage.
VCM [E-H]
These modules open up new application possibilities by adapting the Count
Inputs of Gemini, Libra, Apollo, Lynx, Legends, PAXC, PAXI, CUBC, SC
Series Counters, RMX - Rate Multiplier and the ACS Anti-Coincidence
Summer to machine control voltage signals. The non-polarized input of these
modules accept the four most widely used AC/DC voltage ranges and at count
speeds up to 30 cps (See VCM [E-H] Ordering Information for specific input
voltage ranges). Electrical isolation between the input and the NPN Open-
Collector Transistor output is achieved by means of a UL listed opto-isolator
rated at 1500 V Peak continuous.
CONVERTER MODULES
ADAPTS MANY RED LION CONTROLS’ COUNTERS AND ACCESSORIES
TO A WIDE RANGE OF SIGNAL SOURCES
ELECTRICAL CONNECTIONS FOR VCM [A-D] & TCM
(Shown with optional VCM for Control Voltage Remote Reset)

K
918 www.redlion.net
TCM - TRIAC CONVERTER MODULE
The TCM* is a specialized version of the VCM [A-D]. It is specifically
designed to operate with photo-electric sensors and programmable controllers
that have 115 VAC Triac outputs. Due to protective suppression circuits
connected in parallel with Triacs, these outputs have a high OFF-State
Leakage current, which, if unloaded, is sufficient to keep a VCM in the ON
condition continuously.
The TCM incorporates a current bias that offsets output leakage currents of
up to 4 mA and allows the application of CUB Counters to most unloaded
Triac outputs. These modules are available for operation with 115 VAC ±10%
50/60 Hz only. They operate at count rates up to 10 cps, and also provide
input/output electrical isolation. Connections for the TCM are the same as
those for the VCM [A-D].
Note: VCM’s can be used with Triac outputs that are also driving substantial
loads, since the load will shunt the leakage current away from the VCM
input.
* TCM intended for use with Cub 1, 2, 4, and 7 Counters and Cub 5 with
DC Voltage.
ELECTRICAL CONNECTIONS FOR VCM [E-H]
TYPICAL INPUTS TO LCM
CMOS OR TTL NPN OPEN COLLECTOR PNP OPEN COLLECTOR SHARING SENSOR OUTPUT
(SINK OUTPUT) (SOURCE OUTPUT) WITH OTHER RED LION
CONTROLS’ COUNTERS
LCM - CONVERTER MODULE
The LCM adapts CUB Counters to practically any type of logic and sensor
output, and to any count signal voltage from +3 to +28 VDC. The module
accepts input count pulses from NPN Open-Collector Transistor outputs, Bi-
Polar outputs, or sourcing outputs such as Emitter-Follower or PNP Open-
Collector Transistors (Sourcing outputs must be externally loaded with a load
of 10 Kohms or less). The LCM output is a Bi-Polar drive that is compatible
with either the Low-Speed or High-Speed Counter inputs as well as the
Remote Reset input* of the CUB Counters. The output is inverted with respect
to the input which causes the CUB Counter to increment on the leading
(positive going) edge of a count pulse similar to other Red Lion Controls’
counter series. Power for operation of the LCM can be normally obtained from
the existing D.C. power supply used to operate the sensor or other logic
circuitry. The LCM will operate from any D.C. power source ranging from +5
to +28 VDC, and draws a maximum of 7 mA. No filtering or de-bounce
circuits are included in the LCM itself, since these are already provided within
the CUB Counters. When the LCM output is applied to the H.S. input of CUB
Counters, count rates to 5000 cps can be accommodated (100 μsec minimum
pulse width).** When count pulse signals are generated by switch contacts the
LCM output can be applied to the L.S. input of the CUB to de-bounce these
pulses. Minimum pulse width when driving the L.S. input is 10 msec and
maximum count rate is 50 cps.
*When used to operate Remote Reset input, the LCM will reset counter when
input to LCM goes high due to signal inversion.
** Some Red Lion Controls’ sensors and accessories deliver a 50 μsec output
pulse that will not be accepted by CUB Counters. (The PSMA Power
Supply and Interface Module has a 50 to 100 μsec pulse stretcher circuit
which can be used. See data sheet on PSMA).
RLC UNITS VCM [E-H] COUNT INPUT
SWITCH SET-UP POSITIONS
SC SERIES
COUNTERS
RMX & ACS
S1 = OFF (SNK)
S2 = ON (LO FRQ)
S3 = OFF (HI BIAS)
GEMINI
S1 = ON (LOGIC)
CHANNEL
“A”
SHOWN
⎫⎫
⎬⎬
⎭⎭
S2 = OFF (SNK)
S3 = ON (LO FRQ)
S4 = OFF (HI BIAS)

K
9191-717-767-6511
MODEL NO. DESCRIPTION INPUT VOLTAGE INPUT CURRENT TRACER COLOR PART NUMBER
4-30 V AC/DC 1-15 mA orange VCMA0000
*VCM [A-D] Voltage Converter Module 20-70 V AC/DC 1.2-3.5 mA yellow VCMB0000
60-160 V AC/DC 1.5-2.5 mA none (all white) VCMC0000
150-270 V AC/DC 1.2-1.8 mA red VCMD0000
*TCM Triac Converter Module 115 VAC ±10% 9 mA green TCM10000
+3 to +28 VDC 115 µA max.
*LCM Logic Converter Module (signal) (signal) none LCM10000
+5 to +28 VDC 7 mA max.
(supply) (supply)
*For use with CUB 1, 2, 4, and 7 counters and also Cub 3 and Cub 5 with DC Voltage.
** VCM’s are not recommended for use with rate indicators.
ORDERING INFORMATION
VCM [A-D] Intended For Use With Cub Counters**
MODEL NO. DESCRIPTION INPUT VOLTAGE INPUT CURRENT TRACER COLOR PART NUMBER
4-16 V AC/DC 1.3-12 mA blue VCME0000
VCM [E-H] Voltage Converter Module 20-55 V AC/DC 2.4-8.4 mA violet VCMF0000
75-150 V AC/DC 1.6-3.7 mA black VCMG0000
160-260 V AC/DC 1.6-3.0 mA brown VCMH0000
** VCM’s are not recommended for use with rate indicators.
VCM [E-H] Intended For Use With Gemini, Libra, Apollo, Lynx, SC Series, Legend, C48C, C48T,
PAXC, PAXI and CUBC Counters, & Also RMX & ACS**
DIMENSIONS FOR VCM, TCM, & LCM In inches (mm)

K
920 www.redlion.net
TERMINAL BLOCKS WITH BUILT-IN RELAY OUTPUTS
SLIM DESIGN SAVES DIN RAIL SPACE
REPLACEABLE RELAY SAVES DOWNTIME
JUMPERS SAVE WIRING TIME
The RS Relay System is built around the Relay Block. The Relay Block is a 6.2
mm wide terminal block that serves as the base for the miniature plug-in relay
(included). The relay has a 24 VDC coil, and its SPDT output can switch loads up
to 250 VAC at 6 Amps. With its plug-in design, the relay can be replaced in
seconds. The Block has a built-in suppression circuit to reduce EMC interference.
Other features include an input LED, and reverse polarity protection. The
RSRLYB00 is shipped in packages of 5 pieces, with the relay installed.
SPECIFICATIONS
1. NOMINAL INPUT VOLTAGE: 24 VDC
2. TYPICAL INPUT CURRENT @ 24 VDC: 9 mA
3. TYPICAL OPERATE TIME: 4 msec
4. TYPICAL RELEASE TIME: 8 msec
5. CONTACT TYPE: SPDT (Form C)
6. CONTACT MATERIAL: AgSnO
7. MAX. CONTACT VOLTAGE: 250 V AC/DC
8. MIN. CONTACT VOLTAGE: 12 V AC/DC
9. LIMITING CONTINUOUS CURRENT: 6 A
10. MAX. INRUSH CURRENT: 30 A
11. MIN. SWITCHING CURRENT: 10 mA
12. MAX. POWER RATING (RESISTIVE LOAD): 140 W
13. MIN. SWITCHING POWER: 120 mW
14. INPUT TO OUTPUT ISOLATION: 4 kV, 50 Hz., 1 minute
15. AMBIENT TEMPERATURE RANGE: -20 to 60°C (-4 to 140°F)
16. NOMINAL OPERATING MODE: 100% Duty Cycle
17. INFLAMMABILITY CLASS: VO according To UL 94
18. MECHANICAL LIFE: 20 million cycles
19. CONSTRUCTION: Case body is green, Polymide PA non-reinforced
20. CONNECTIONS: 14 AWG max. Torque 4-6 in-lb.
21. MOUNTING: Standard DIN Top Hat (T) profile rail according to EN50022
–35 x 7.5 and 35 x 15.
22. WEIGHT: 0.073 lb. (33.1 g)
The RSJMPR Jumper can be used to bridge connections between adjacent
Relay Blocks. This avoids the tedious task of wire-jumping signals such as
commons or neutrals together. The maximum current capability of the RSJMPR
is 6 A. The RSJMPR is available in three different colors, and is shipped in
packages of 20 pieces.
SPECIFICATIONS
1. MAX. CURRENT: 6 A
2. LENGTH: 0.24" (6 mm)
3. COLOR: Available in Red, Blue, and Gray
MODEL RS - DIN RAIL RELAY SYSTEM
DIMENSIONS In Inches (mm)
BLOCK DIAGRAM
UL Recognized Component,
File # E257265
DESCRIPTION
The RS Relay System provides a compact, modular means of adding relay
outputs to any transistor output device. The RSRLYB Relay Block serves as the
base for a miniature, 24 volt coil relay, capable of switching up to 250 VAC at
6 Amps. Accessories, such as Jumpers, Buss Blocks, and Relay Markers are
available to save installation time and money.
2-POSITION JUMPER-RSJMPR
RELAY BLOCK-RSRLYB

K
9211-717-767-6511
The RSCJMP can be used to bridge up to 80 adjacent Relay Blocks with total
currents as high as 30 A. For currents above 6 A, the Buss Block must be used
as the starting point. This cut-to-length jumper is available in three colors, and
is shipped in packages of 2 pieces.
SPECIFICATIONS
1. MAX. CURRENT: 30 A
2. LENGTH: 19.7" (500 mm)
3. COLOR: Available in Red, Blue, and Gray
The 9 mm wide Buss Block is the same shape as the RSRLYB Relay Block.
It can be used as a starting point for the continuous jumper in applications
requiring up to 30 A. In applications that require less than 6 A, the starting point
for the jumper(s) can take place at one of the Relay Blocks.
SPECIFICATIONS
1. MAX. CURRENT: 30 A
2. MAX. VOLTAGE: 250 V
3. CONSTRUCTION: Case body is gray, Polymide PA non-reinforced
4. CONNECTIONS: 10 AWG max. Torque 4-6 in-lb.
5. WEIGHT: 0.077 lb. (34.9 g)
The Barrier is always required at the start and end of a Relay System to
provide protective separation according to VDC 0106-101. The Barrier should
also be used to isolate adjacent Relay Blocks with voltage potentials greater
than 250 V. The RSBARR is equipped with prescored breakout points at the
bridging positions so that individual bridges can pass through if needed. The
RSBARR00 is shipped in packages of 2 pieces.
SPECIFICATIONS
1. COLOR: Black
The RSMARK00 Relay Markers can be used to label the Relay Blocks. After
labeling or writing on the Marker, it is snapped onto the engagement lever of the
Relay Block, providing a visual means of identification. The RSMARK00 is
shipped in packages of 100 pieces.
SPECIFICATIONS
1. COLOR: White
MODEL NO. DESCRIPTION QUANTITY/PACKAGE PART NUMBER
RSRLYB Relay Block 5RSRLYB00
RSBUSS Buss Block 1 RSBUSS00
RSBARR Barrier 2 RSBARR00
RSRSTP Rail Stop 2 RSRSTP00
2-Position Jumper Red 20 RSJMPR10
RSJMPR 2-Position Jumper Blue 20 RSJMPR20
2-Position Jumper Gray 20 RSJMPR30
Continuous Jumper Red 2RSCJMP10
RSCJMP Continuous Jumper Blue 2RSCJMP20
Continuous Jumper Gray 2RSCJMP30
RSMARK Relay Marker 100 RSMARK00
RSRLY1 Replacement Relay 5 RSRLY100
ORDERING INFORMATION
CONTINUOUS JUMPER-RSCJMP
RELAY MARKERS-RSMARK
BARRIER-RSBARR
BUSS BLOCK-RSBUSS

K
922 www.redlion.net
SWITCHES UP TO 45 AMPERES @ 240 VAC
LOW LEVEL DC INPUT CONTROL SIGNAL (3-32 VDC)
OPTICALLY-ISOLATED OUTPUT
ZERO VOLTAGE TURN-ON, ZERO CURRENT TURN-OFF FOR
REDUCED RFI
INTERNAL SNUBBERS TO REDUCE FALSE TRIGGERING
RELATED TO HIGH dv/dt APPLICATIONS
SUPPLIED WITH HIGH EFFICIENCY HEATSINK FOR SUPERIOR
THERMAL and SURGE CURRENT RATINGS
GENERAL DESCRIPTION
The SSR Power Unit is a solid state relay which can switch load currents up
to 45 Amperes @ 240 VAC. The unit interfaces directly with a SSR Drive
Module (OMD00003). The input and output terminals are isolated from each
other to eliminate ground loops and noise problems. The unit features a zero
voltage turn-on and a zero current turn-off detector to minimize radiated RFI
when switching. An internal snubber minimizes inrush currents and guards
against false triggering of the output; related to high dv/dt applications. A low
DC control signal of +3 to +32 VDC is all that is needed for the switching
operation. The solid state switch, highlighted by the inverse-parallel SCR
output, provides a greatly increased operational life over a mechanical relay by
avoiding the usual relay contact problems: arcing, bouncing, mechanical
failure, etc. The solid state relay is shipped mounted to the high efficiency
heatsink for immediate installation.
MODEL RLY5 - SOLID STATE POWER UNIT
SPECIFICATIONS
OUTPUT SPECIFICATIONS
1. Operating Voltage Range: 50-280 VAC RMS
2. Operating Frequency Range: 47-63 Hz
3. Maximum Continuous Load Current: See Thermal Rating Code
4. Maximum Surge Load Current: See Peak Surge Current Curve
5. Minimum Load Current: 40 mA RMS
6. Maximum Off-State Leakage Current: 10 mA RMS
7. Maximum Transient Voltage: 600 V peak
8. Maximum Output Voltage Drop: 1.6 V peak
9. Power Dissipation at Full Load: 50 Watts
10. Maximum I2T: 1600A2sec
(For Fusing Purposes, t = 8.3 msec)
11. Minimum Off-State dv/dt protection: 500 V/usec
INPUT SPECIFICATIONS
(Use with RLC SSR Drive Module, OMD00003)
1. Control Voltage Range: 3 to 32 VDC
2. Maximum Turn-on Voltage: 3 VDC
3. Minimum Turn-off Voltage: 1 VDC
4. Maximum Reverse Voltage: -32 VDC
5. Minimum Input Impedance: 1500 Ω
6. Maximum Turn-on/Turn-off time: 8.3 msec
GENERAL SPECIFICATIONS
1. Isolation (Input to Output to Base): 4000 V RMS
2. Insulation Resistance: 10 GΩ
3. Operating Temperature Range: -30° to +75°C
4. Storage Temperature Range: -40° to +120°C
DIMENSIONS In inches (mm)
MODEL DESCRIPTION PART NUMBER
RLY5 SSR Power Unit RLY50000
ORDERING INFORMATION
INSTALLATION
It is recommended to mount the unit outside of an enclosure in an area where
there is unrestricted air flow. The unit should always be mounted with the fins
in a vertical position to maximize heat dissipation. If mounting the unit inside
an enclosure, the internal temperature of the enclosure will normally be higher
than the surrounding area and must be accounted for. At full rated load, the unit
will dissipate 50 watts and achieve a case temperature in excess of 90°C. In all
installations, it is important to allow at least two inches around the power unit
for proper ventilation.

K
9231-717-767-6511
FUSING
The output of the SSR Power Unit should be protected by a fast blow I2t fuse
(Bussman KAX-30 or equivalent). This guards against long duration surge
currents, short circuits, etc., which may damage the SSR Power Unit.
MECHANICAL INTERRUPT SWITCH
The off-state output leakage current of the power unit is 10 mA maximum.
The voltage level of the output will rise proportional to the resistance of the load
due to this leakage current. Full line voltage can be measured when the output
is connected to a high resistance load and the power unit is in the off-state.
A mechanical interrupt switch (double pole) should be placed between both
sides of the line voltage and the load. The switch should be opened when
servicing any part of the output wiring. When measuring the off-state output
voltage of the unit for correct operation, load the output of the SSR Power Unit
with a small resistance (approximately 100 ohms).
SNUBBING
The power unit has internal snubbers to guard against transients generated by
most loads. Loads with low power factors (ie. motors) may require additional
external snubbing network.
SURGE CURRENT
When the SSR Power Unit switches a load on, an in-rush (surge) current that
is higher than the continuous load current will flow. The surge current can be
estimated from the table below which outlines the ratio of surge to steady state
current for various load devices. The surge current duration must be within the
Safe Operating Area of the Peak Surge Current vs. Time Figure. Surge currents
outside the safe operating area will shorten the life of or cause permanent
damage to the power unit.
CONNECTIONS
Separate power feed lines should be run to the load side of the relay. The
controller unit and the load should NEVER share the same power feed. It is
recommended to install the SSR Power Unit as close to the load as possible to
keep the power cable runs short. This will help reduce noise from radiating
into other equipment. The input control signal cable can be run over distances
in excess of 200 ft. with shielded cable from the controller to the SSR power
unit. Connect the shield to the minus “-” terminal of the control signal, on the
SSR Power Unit and at only one end.
OPERATION
The following are important aspects of operation of the SSR power unit
which must be considered. Adhering to these guidelines will ensure reliable and
trouble free operation.
THERMAL RATING CURVES
The Thermal Rating Curve will determine the maximum allowable ambient
operating temperature for the maximum continuous load current. The two
parameters must intersect in the Safe Operating Area of the graph. Operation
outside the safe operating area will shorten the life of or cause permanent
damage to the SSR Power Unit.
The ambient temperature of the
power unit should be measured
with all of the associated
equipment operating to verify
the Thermal Ratings.
Ratio
Surge Current to
Steady State Current
5
7
10
Compressors 10
Motors (motionless)
Load Device
Incandescent Bulbs (cold)
Quartz Heaters (cold)
MULTIPLE UNITS
For increased power handling, up to four SSR Power Units may be parallel
connected, and all controlled by a single output of an SSR Drive Module
(OMD00003). The output of the SSR Power Units must NOT be parallel
connected to the same load because of unequal current sharing among the
devices. The outputs should be wired to individual heaters, but they may share
the same supply. If five or more SSR Power Units are required, a Relay Output
Module (OMD00000) may be used in conjunction with an external +12 VDC
power source (RLC Model APS01000) to switch the SSR Power Units.

K
924 www.redlion.net
INTEGRATED HEAT SINK
OPTICALLY ISOLATED
SOLID STATE SWITCHING
SINGLE PHASE OUTPUT RATING: 25 A (RLY6) or 40 A (RLY6A)
SWITCHING: 24 TO 660 VAC
CONTROL SIGNAL: 4 TO 32 VDC
ZERO VOLTAGE TURN-ON
MOUNTS ON DIN RAIL OR DIRECTLY TO PANEL
4000 VOLT ISOLATION
BUILT-IN SNUBBER
LED “ON” INDICATOR
CAGE CLAMP TERMINATIONS
SAFETY SUMMARY
All safety related regulations, local codes and instructions
that appear in the literature or on equipment must be observed
to ensure personal safety and to prevent damage to either the
instrument or equipment connected to it. If equipment is used
in a manner not specified by the manufacturer, the protection
provided by the equipment may be impaired.
Do not use this unit to directly command motors, valves, or
other actuators not equipped with safeguards. To do so, can be
potentially harmful to persons or equipment in the event of a
fault to the unit.
MODEL RLY6/RLY6A - SINGLE PHASE DIN RAIL MOUNT SOLID STATE RELAY
RLY6, 25 Amp DIMENSIONS In inches (mm)
TOP VIEW
GENERAL DESCRIPTION
The RLY60000 is a solid state relay that switches load currents up to 25 A; the RLY6A000
switches load currents up to 40 A. These units feature a zero voltage turn-on detector to minimize
radiated RFI when switching. An internal snubber guards against false triggering of the output
related to high dv/dt applications. A low level DC control signal of 4 to 32 VDC is all that is needed
for the switching operation. These units, highlighted by the inverse-parallel SCR output, provide a
greatly increased operational life over mechanical relays by avoiding the usual relay contact
problems such as: arcing, bouncing, and mechanical failure.
The RLY6/RLY6A can be directly controlled by logic/SSR drive output or sourcing output of
Red Lion Controls products.
UL Recognized Component,
File #E191578
LR 702877
CAUTION: Risk of Danger.
Read complete instructions prior to installation
and operation of the unit.
CAUTION: Risk of electric shock.
RLY6A, 40 Amp DIMENSIONS In inches (mm)
TOP VIEW
SPECIFICATIONS
OUTPUT SPECIFICATIONS
1. OPERATING VOLTAGE RANGE: 24 to 660 VAC
2. OPERATING FREQUENCY RANGE: 47 to 63 Hz
3. MAXIMUM CONTINUOUS LOAD CURRENT:
(See Safe Operating Conditions)
RLY6: 25 ARMS
RLY6A: 40 ARMS
4. SURGE CURRENT:
RLY6:
Non-Repetitive 1 Cycle: 250 APEAK
Non-Repetitive 1 Second: 100 APEAK
RLY6A:
Non-Repetitive 1 Cycle: 250 APEAK
Non-Repetitive 1 Second: 150 APEAK
5. MIN. LOAD CURRENT: 100 mA
6. LEAKAGE CURRENT @ VOUT (Max.): 8 mA
7. OVER VOLTAGE RATING: 1400 PIV
8. VOLTAGE DROP @ IOUT: 1.5 VAC
9. POWER DISSIPATION AT FULL LOAD:
RLY6: 25.0 Watts
RLY6A: 48.0 Watts

K
9251-717-767-6511
SAFE OPERATING CONDITIONS
The relay must always operate within the “Safe Operating Area” of the
Derating Curve Figure. Operations outside the Safe Operating Area will shorten
the life of, or cause permanent damage to, the relay. The ambient temperature
should be measured 1" (25 mm) below the relay (when mounted to a vertical
surface) and with all of the associated equipment operating.
ORDERING INFORMATION
SPECIFICATIONS (Cont’d)
10. I2T FUSING: 1035 A2S
(For Fusing Purposes, T = 8.3 msec.)
11. Dv/Dt @ VOUT (Max.): 500 V/μsec
INPUT SPECIFICATIONS
1. CONTROL VOLTAGE RANGE: 4 to 32 VDC
2. TURN-ON VOLTAGE (MIN.): 4 VDC
3. TURN-OFF VOLTAGE (MAX.): 1 VDC
4. REVERSE VOLTAGE PROTECTION: -75 VDC
5. INPUT CURRENT (MAX.): 8 mA
GENERAL SPECIFICATIONS
1. ISOLATION (INPUT TO OUTPUT TO BASE): 4000 VRMS
2. CAPACITANCE INPUT TO OUTPUT: 3 pf
3. OPERATING TEMPERATURE RANGE: -40°C to +80°C
SCHEMATIC
FUSING
Devices such as electromechanical circuit breakers and slow blow fuses
cannot react quickly enough to protect this relay in a shorted condition. Fast
“semiconductor fuses” with appropriate I2T ratings are strongly recommended.
MECHANICAL INTERRUPT SWITCH
The off-state leakage current of the power unit is 8 mA maximum. The
voltage level of the output will rise proportional to the resistance of the load due
to this leakage current. Full line voltage can be measured when the output is
connected to a high resistance load and the power unit is in the off-state.
A mechanical interrupt switch is recommended between both sides of the line
voltage and the load. The switch should be opened when servicing any part of
the output wiring. When measuring the off-state output voltage of the unit for
correct operation, load the output of the RLY6/RLY6A with a small resistance
(approximately 100 ohms).
WIRING GUIDELINES
The controlling device and the relay load should NEVER share the same
power feed. It is recommended that this relay be installed as close as possible
to the load to keep the power cable runs short. The control voltage can run over
distances in excess of 200 feet with shielded cable. If using shielded cable,
connect the shield to the minus “-” terminal of the control signal at one end only.
RLY6A000
RLY60000
40 A Single Phase Din Rail Mount Solid State Relay
25 A Single Phase Din Rail Mount Solid State Relay
RLY6A
RLY6
PART NUMBERS
DESCRIPTIONMODEL
It is strongly recommended that a 0.18" (4.6 mm) clearance is maintained on
all four sides of the relay. If the relays are mounted against each other, then the
end relays must be derated by additional 10% (of the Derating Curve) and the
middle relays by 20%.
In small enclosures, adequate ventilation must be provided to assure proper
safe operating temperature. Accumulation of dust and dirt on the heat sink fins
will also affect heat dissipation. In extreme dust and dirt conditions, the relay
must be derated by additional 20%.

K
926 www.redlion.net
INTEGRATED HEAT SINK
OPTICALLY ISOLATED
SOLID STATE SWITCHING
25 A THREE PHASE OUTPUT RATING
24 TO 660 VAC SWITCHING
4 TO 32 VDC CONTROL SIGNAL
ZERO VOLTAGE TURN-ON
MOUNTS ON DIN RAIL OR DIRECTLY TO PANEL
4000 VOLT ISOLATION
BUILT-IN SNUBBER
LED “ON” INDICATOR
CAGE CLAMP TERMINATIONS
GENERAL DESCRIPTION
The RLY7 is a three phase solid state relay that switches load currents up to
25 A. The unit features a zero voltage turn-on detector to minimize radiated RFI
when switching. An internal snubber guards against false triggering of the
output related to high dv/dt applications. A low level DC control signal of 4 to
32 VDC is all that is needed for the switching operation. This unit, highlighted
by the inverse-parallel SCR output, provides a greatly increased operational life
over a mechanical relay by avoiding the usual relay contact problems such as:
arcing, bouncing, and mechanical failure.
The RLY7 can be directly controlled by logic/SSR drive output or sourcing
output of Red Lion Controls products.
SAFETY SUMMARY
All safety related regulations, local codes and instructions that appear in the
literature or on equipment must be observed to ensure personal safety and to
prevent damage to either the instrument or equipment connected to it. If
equipment is used in a manner not specified by the manufacturer, the protection
provided by the equipment may be impaired.
Do not use this unit to directly command motors, valves, or other actuators
not equipped with safeguards. To do so, can be potentially harmful to persons
or equipment in the event of a fault to the unit.
SPECIFICATIONS
OUTPUT SPECIFICATIONS
1. Operating Voltage Range: 24 to 660 VAC
2. Operating Frequency Range: 47 to 63 Hz
3. Maximum Continuous Load Current: 25 Amps (3 pole), 35 Amps (2 pole)
(See Safe Operating Conditions)
5. Min. Load Current: 100 mA
6. Leakage Current @ VOUT (Max.): 10 mA
7. Peak Blocking Voltage: 1400 VAC
8. Voltage Drop @ IOUT: 3 VAC
9. I2T Fusing: 1350 A2sec
(For Fusing Purposes, T = 8.3 msec.)
10. Dv/Dt @ VOUT (Max.): 1000 V/μsec
MODEL RLY7 - THREE PHASE DIN RAIL MOUNT SOLID STATE RELAY
DIMENSIONS In inches (mm)
UL Recognized Component,
File #E191578
TOP VIEW
CAUTION: Risk of Danger.
Read complete instructions prior to
installation and operation of the unit.
CAUTION: Risk of electric shock.

K
9271-717-767-6511
INPUT SPECIFICATIONS
1. Control Voltage Range: 4 to 32 VDC
2. Turn-on Voltage (Min.): 4 VDC
3. Turn-off Voltage (Max.): 1 VDC
4. Input Current (Max.): 15 mA
GENERAL SPECIFICATIONS
1. Isolation (Input to Output to Base): 4000 VRMS
2. Operating Temperature Range: 0°C to 40°C
SAFE OPERATING CONDITIONS
The relay must always operate within the “Safe Operating Area” of the
Derating Curve Figure. Operations outside the Safe Operating Area will shorten
the life of, or cause permanent damage to, the relay. The ambient temperature
should be measured 1" (25 mm) below the relay (when mounted to a vertical
surface) and with all of the associated equipment operating.
It is strongly recommended that a 1" (25 mm) clearance is maintained on all
four sides of the relay. If the relays are mounted against each other, then the end
relays must be derated by an additional 10% (of the Derating Curve) and the
middle relays by 20%.
In small enclosures, adequate ventilation must be provided to assure proper
safe operating temperature. Accumulation of dust and dirt on the heat sink fins
will also affect heat dissipation. In extreme dust and dirt conditions, the relay
must be derated by an additional 20%.
SCHEMATIC
FUSING
Devices such as electromechanical circuit breakers and slow blow fuses
cannot react quickly enough to protect this relay in a shorted condition. Fast
“semiconductor fuses” with appropriate I2T ratings are strongly recommended.
MECHANICAL INTERRUPT SWITCH
The off-state leakage current of the power unit is 10 mA maximum. The
voltage level of the output will rise proportional to the resistance of the load due
to this leakage current. Full line voltage can be measured when the output is
connected to a high resistance load and the power unit is in the off-state.
A mechanical interrupt switch is recommended between the line voltage and
the load. The switch should be opened when servicing any part of the output
wiring. When measuring the off-state output voltage of the unit for correct
operation, load the output of the RLY7 with a small resistance (approximately
100 ohms).
WIRING GUIDELINES
The controlling device and the relay load should NEVER share the same
power feed. It is recommended that this relay be installed as close as possible to
the load to keep the power cable runs short. The control voltage can run over
distances in excess of 200 feet with shielded cable. If using shielded cable,
connect the shield to the minus ″-″terminal of the control signal at one end only.
MODEL NO. DESCRIPTION PART NUMBER
RLY7 Three Phase Din Rail Mount Solid State Relay RLY70000
ORDERING INFORMATION
THREE PHASE HEATING APPLICATION
This application shows a Model TCU Temperature Controller regulating
the temperature of a drying kiln. The TCU has an SSR Drive Output
Module installed. This module controls the three phase relay directly.

K
928 www.redlion.net
MODEL PAXLBK - LABEL KIT FOR PAX
DESCRIPTION
All of the 5 digit PAX units allow you to use this handy kit.
Choose from one of 189 different engineering units, and insert
it into the unit. The label lights up from inside the PAX where
it is protected from washdown and dirty environments. The
backlight is controlled in the programming.
ORDERING INFORMATION
MODEL NO. DESCRIPTION PART NUMBERS
PAXLBK Units Label Kit for 5 Digit PAX PAXLBK10

K
9291-717-767-6511
MODEL LX - LABEL ACCESSORY FOR LPAX
INSTALLATION
Before applying the labe
embossed area is clean, dry
Remove the backing and c
the embossed area and attac
to seat the edges of the labe
Attach Units
Label to this
embossed
area.
SP3 SP4
LX LABEL ACCESSORY
LXBLANK0 * LXK00000 LXA00000 LXMA0000 LXUA0000 LXHZ0000 LXKHZ000 LXKV0000 LXVA0000
** These labels included with MPAXT units* Blank label included with each LPAX
LXKVA000 LXVAC000 LXMV0000 LXV00000
LXKOHM00 LXMOHM20 LXW00000 LXKW0000 LXKWH000 LXKG0000 LXTON000 LXGAL000 LXL00000 LXML0000 LXKL0000 LXM30000LXMOHM10 LXOHM000
LXIN3000 LXFT3000 LXYD3000 LXL/H000 LXKG/S00 LXKG/MIN LXM3/S00 LXM3/MIN LXM3/H00 LXL/S000 LXL/MIN0 LXKG/H00LXCM3000 LXMM3000
LXFT3/MN LXFT3/H0 LXBPS000 LXBPM000 LXLPM000 LXGPS000 LXGPM100 LXGPM200 LXGPH000 LXFPS100 LXFPM100 LXFPH000LXTON/H0 LXFT3/S0
LXYPS000 LXYPM000 LXYPH000 LXIPS000 LXIPM000 LXIPH000 LXCPS000 LXCPM000 LXCPH000 LXMPS000 LXMPM000 LXMPH000LXFPS200 LXFPM200
LXRPS200 LXRPM000 LXRPH000 LXPPB000 LXPPM000 LXMM/S00 LXCM/S00 LXCM/MIN LXM/S000 LXM/MIN0 LXM/H000 LXT/MIN0LXKPH000 LXRPS100
LXLB/H00 LXT10000 LXT20000 LX%RH000 LXPH0000 LXDEG000 LXG00000 LXOZ0000 LXLB0000 LX10X000 LX100X00 LX1000X0LXU/MIN0 LXLB/MIN
LXPHC000 LXBAR000 LXINHG00 LXPSI000 LXKPA000 LX%00000 LXIN0000 LXFT0000 LXYD0000 LXMM0000 LXCM0000 LXM00000LXPHA000 LXPHB000
LXHP0000 LXINLB00 LXFTLB00 LXMIN000 LXH00000 LXS00000 LXSEC000 LXVDC000 LXDF0000 ** LXDC0000 **LXKM0000 LXN00000
Nhp
km in lb ft lb min hS
SEC VDC °F°C
m
cm
mm
yd
ft
in
%
kPa
psi
in
Hg
barØCØBØA
u
min min
lb lb
hTt%RH pH deg Goz lb x10 x100 x1000
t
min
mm
m
h
mins
s
smin
cm
cm
mm
ppm
ppb
rpm rph
kph
fpm
rps
fps
RPS
YPS YPM YPH IPS IPM IPH
LPM
CPS CPM
GPM
BPM
BPS gps gpm gph
CPH MPS MPM MPH
FPH
FPM
FPS
ton
hs
ft3ft3ft3
min h
m3m3m3
min min
ss s
kg kg
h
l
ll
ml
Km3
kg
min h
l
V
VA mV
VAC
kVA
gal
ton
kg
KWh
kV
kHz
Hz
h
l
yd3
3
3
3ft
inmm
K
KA
MWKW
mA A
µ
m
cm3
DESCRIPTION
The LX label accessories allow the 5 digit LPAX display to be
customized with an engineering unit. The label is affixed to the
embossed area on the bezel of the LPAX. The LPAX module is
then programmed to turn on its backlighting, which illuminates
the label from behind.
ORDERING INFORMATION
Listed AboveCustom Units Label for 5 Digit LPAXLX
PART NUMBERSDESCRIPTIONMODEL NO.

K
930 www.redlion.net
DESCRIPTION
This bulletin serves as a guide for the installation, configuration and operation
of the CUB5 USB Programming plug-in card for the CUB5. The plug-in card is
a separately purchased option card that plug into the main circuit board of the
meter. The CUB5USB card in conjunction with the Crimson®programming
software enables the user to configure CUB5 on a PC. The CUB5USB requires
installation of drivers which are included with the Crimson Programming
software. Following installation of the drivers, the card appears as a Virtual
communications port.
Crimson is a Windows®based program that allows configuration of the CUB®5
meters from a PC. Crimson offers standard drop-down menu commands, that
make it easy to program the CUB5 meters. The CUB5 program can then be
saved in a PC file for future use. A CUB5 serial plug-in card is required to
program the meter using the software.
MODEL CUB5USB - USB PROGRAMMING OPTION CARD
INSTALLING PLUG-IN CARDS
The card plugs into the main circuit board of the meter as shown.
Perform USB driver installation below prior to powering the
CUB5 and connecting CUB5USB to PC USB port.
WARNING: Disconnect all power to the unit before
installing Plug-in card.
CAUTION: The Plug-in cards and main circuit board contain static
sensitive components. Before handling the cards, discharge static
charges from your body by touching a grounded bare metal
object. Ideally, handle the cards at a static controlled clean
workstation. Also, only handle the cards by the edges. Dirt, oil or
other contaminants that may contact the cards can adversely
affect circuit operation.
USB DRIVER INSTALLATION
1. Download and install the latest Crimson 2 build on your Windows®compatible
PC. Earlier builds may not have the RLC Virtual Comm port drivers. Crimson
software is available as a free download at http://www.redlion.net.
2. Install CUB5USB card into CUB5 meter and apply power to the CUB5.
3. Connect Type A USB cable to computer and CUB5USB option card.
Windows will prompt you for the location of the drivers for the device. The
default location for these drivers is “C:\Program Files\Red Lion
controls\Crimson 2.0\Device.” When the hardware setup appears, choose
“Install from a list or Specific location,” click Next, and then check “Include
this location...” and click the Browse button. Point the Wizard at the location
specified above or whatever other location you specified during installation
of the software. It is important that you perform this step correctly, or you
may have to manually remove the drivers using the Device Manager, and
repeat the installation once more.
Note: Crimson’s USB drivers have not been digitally signed by Microsoft®,
and you will therefore see a dialog offering you the chance to stop the
installation. You should be sure to select the Continue option to indicate
that you do indeed wish to install the drivers.
4. Windows will automatically assign a comms port to the CUB5USB. To
determine the port assigned, open “System Properties” from within
Windows®Control Panel. Select the Hardware tab, and click the “Device
Manager” button. Expand the “Ports” line. Take note of which Comms port
is assigned to “RLC Virtual Comm port”. It must be Com4 or lower to operate
with Crimson 2. If higher, right-click on the entry and select “Properties,”
“Port Settings” tab, and then “Advanced” button. Select a Coms port that is
COM4 or lower and is not physically being used.
SPECIFICATIONS
CUB5USB PROGRAMMING CARD
Type: USB Virtual Comms Port
Baud Rate: 300 to 38.4k
Unit Address: 0 to 99
CRIMSON 2 SYSTEM REQUIREMENTS
• Windows 2000, XP, or Vista
• RAM and free disk space as required by the chosen operating system.
• An additional 50 MB of disk space for software installation.
• A display of at least 800 by 600 pixels
• A USB port for downloading to the CUB5
ORDERING INFORMATION
* Crimson software is available for download from http://www.redlion.net/
USB Card
MODEL NO. DESCRIPTION PART NUMBER
SFCRD*
CBLUSB
CUB5USB
Crimson 2 PC Configuration Software for
Windows 98, ME, 2000 and XP
Type A to B USB Cable
CUB5 USB Programming Card
SFCRD200
CBLUSB00
CUB5USB0

K
9311-717-767-6511
DATA BIT *
ABBREVIATED PRINTING *
PRINT OPTIONS *
PARITY BIT*
300 1200
600 2400
19200
38400
4800
9600
7-bit 8-bit
NO Odd EVEN
NO YES
NO YES
Module 5 is the programming module for the Serial Communications
Parameters. The only paramters of concern when utilizing the CUB5USB
programming option card to communicate with Crimson 2 programming
software is the Baud Rate and Meter Address. The Parameters are only
accessible when an optional CUB5USB, RS232 or RS485 serial
communications card is installed in the meter.
MODULE 5 - SERIAL COMMUNICATIONS PARAMETERS (5-SEr)
PARAMETER MENU
BAUD RATE
Set the baud rate to match that of other serial communications equipment.
Normally, the baud rate is set to the highest value that all of the serial
communications equipment is capable of transmitting and receiving.
Select either 7- or 8-bit data word length. Set the word length to match the
other serial communications equipment on the serial link.
This parameter only appears when the Data Bit parameter is set to a 7-bit
data word length. Set the parity bit to match that of the other serial equipment
on the serial link. The meter ignores parity when receiving data and sets the
parity bit for outgoing data. If parity is set to NO, an additional stop bit is used
to force the frame size to 10 bits.
This parameter determines the formatting of data transmitted from the meter
in response to a Transmit Value command or a Block Print Request. Select NO
for a full print transmission, consisting of the meter address, mnemonics, and
parameter data. Select YES for abbreviated print transmissions, consisting of the
parameter data only. This setting is applied to all the parameters selected in the
PRINT OPTIONS. (Note: If the meter address is 0, the address will not be sent
during a full transmission.)
This parameter selects the meter values transmitted in response to a Print
Request. A print request is also referred to as a block print because more than
one parameter can be sent to a printer or computer as a block.
Selecting YES displays a sublist for choosing the meter parameters to appear
in the print block. All active parameters entered as YES in the sublist will be
transmitted during a block print. Parameters entered as NO will not be sent.
The “Print All” (P-ALL) option selects all meter values for transmitting (YES),
without having to individually select each parameter in the sublist.
Note: Inactive parameters will not be sent regardless of the print option
setting. For example, the Setpoint value(s) will not be sent unless an optional
setpoint card is installed in the meter.
ª
«
9600
bAUd
ª
«
7-bit
dAtA
ª
«
Odd
PAr
ª
«
NO
Abbr
ª
«
NO
OPt
Indicates Program Mode Alternating Display.
Factory Settings are shown.
ª
«
Parameter
Selection/Value
* - Disregard these parameters when configuring unit to upload or download wth Crimson.
* - Disregard these parameters when configuring unit to upload or download wth
Crimson software.
METER ADDRESS
Enter the serial node address. With a single unit, an address is not needed
and a value of zero can be used (RS232 applications). Otherwise, with multiple
bussed units, a unique address number must be assigned to each meter. The
node address applies specifically to RS485 applications.
ª
«
00
Addr 0 to 99

K
932 www.redlion.net
DESCRIPTION
This bulletin serves as a guide for the installation, configuration and operation
of the RS232 and RS485 serial communications plug-in cards for the CUB5.
The plug-in cards are separately purchased option cards that plug into the main
circuit board of the meter. Only one communication card can be used at a time.
Crimson is a Windows®based program that allows configuration of the CUB5
meters from a PC. Crimson offers standard drop-down menu commands, that
make it easy to program the CUB5 meters. The CUB5 program can then be
saved in a PC file for future use. A CUB5 serial plug-in card is required to
program the meter using the software.
MODEL CUB5COM -SERIAL COMMUNICATIONS PLUG-IN OPTION CARDS
INSTALLING PLUG-IN CARDS
The cards plug into the main circuit board of the meter as shown.
WARNING: Disconnect all power to the unit before
installing Plug-in card.
CAUTION: The Plug-in cards and main circuit board contain static
sensitive components. Before handling the cards, discharge static
charges from your body by touching a grounded bare metal
object. Ideally, handle the cards at a static controlled clean
workstation. Also, only handle the cards by the edges. Dirt, oil or
other contaminants that may contact the cards can adversely
affect circuit operation.
WIRING CONNECTIONS
Connections to the serial communications cards are made through an RJ11
modular connector. Connector pin-outs for the RS485 and RS232 cards are
shown below.
SPECIFICATIONS
RS485 SERIAL COMMUNICATIONS CARD
Type: RS485 multi-point balanced interface (non-isolated)
Baud Rate: 300 to 38.4k
Data Format: 7/8 bits; odd, even, or no parity
Bus Address: 0 to 99; max 32 meters per line
Transmit Delay: Selectable, 2 msec min. or 50 msec min.
RS232 SERIAL COMMUNICATIONS CARD
Type: RS232 half duplex (non-isolated)
Baud Rate: 300 to 38.4k
Data Format: 7/8 bits; odd, even, or no parity
ORDERING INFORMATION
* Crimson software is available for download from http://www.redlion.net/
Comms Card
RJ11 CONNECTOR PIN OUTS
MODEL NO. DESCRIPTION PART NUMBER
SFCRD*
CBL
CUB5COM
Crimson 2 PC Configuration Software for
Windows 98, ME, 2000 and XP
RS232 Programming Cable (DB9-RJ11)
RS485 Serial Communications Card
SFCRD200
CBLPROG0
CUB5COM1
RS485 Programming Cable (DB9-RJ11)
RS232 Serial Communications Card
CBPRO007
CUB5COM2

K
9331-717-767-6511
DATA BIT
ABBREVIATED PRINTING
PRINT OPTIONS
PARITY BIT
METER ADDRESS
300 1200
600 2400
19200
38400
4800
9600
7-bit 8-bit
NO Odd EVEN
NO YES
NO YES
Module 5 is the programming module for the Serial Communications
Parameters. These parameters are used to match the serial settings of the CUB5
with those of the host computer or other serial device. The Serial Setup
Parameters are only accessible when an optional RS232 or RS485 serial
communications module is installed in the meter.
MODULE 5 - SERIAL COMMUNICATIONS PARAMETERS (5-SEr)
PARAMETER MENU
BAUD RATE
Set the baud rate to match that of other serial communications equipment.
Normally, the baud rate is set to the highest value that all of the serial
communications equipment is capable of transmitting and receiving.
Select either 7- or 8-bit data word length. Set the word length to match the
other serial communications equipment on the serial link.
This parameter only appears when the Data Bit parameter is set to a 7-bit
data word length. Set the parity bit to match that of the other serial equipment
on the serial link. The meter ignores parity when receiving data and sets the
parity bit for outgoing data. If parity is set to NO, an additional stop bit is used
to force the frame size to 10 bits.
Enter the serial node address. With a single unit, an address is not needed
and a value of zero can be used (RS232 applications). Otherwise, with multiple
bussed units, a unique address number must be assigned to each meter. The
node address applies specifically to RS485 applications.
This parameter determines the formatting of data transmitted from the meter
in response to a Transmit Value command or a Block Print Request. Select NO
for a full print transmission, consisting of the meter address, mnemonics, and
parameter data. Select YES for abbreviated print transmissions, consisting of the
parameter data only. This setting is applied to all the parameters selected in the
PRINT OPTIONS. (Note: If the meter address is 0, the address will not be sent
during a full transmission.)
This parameter selects the meter values transmitted in response to a Print
Request. A print request is also referred to as a block print because more than
one parameter can be sent to a printer or computer as a block.
Selecting YES displays a sublist for choosing the meter parameters to appear
in the print block. All active parameters entered as YES in the sublist will be
transmitted during a block print. Parameters entered as NO will not be sent.
The “Print All” (P-ALL) option selects all meter values for transmitting (YES),
without having to individually select each parameter in the sublist.
Note: Inactive parameters will not be sent regardless of the print option
setting. For example, the Setpoint value(s) will not be sent unless an optional
setpoint card is installed in the meter.
ª
«
9600
bAUd
ª
«
7-bit
dAtA
ª
«
Odd
PAr
ª
«
00
Addr
ª
«
NO
Abbr
ª
«
NO
OPt
0 to 99
Indicates Program Mode Alternating Display.
Factory Settings are shown.
ª
«
Parameter
Selection/Value
ANALOG MODELS - CUB5V, CUB5I, CUB5P, CUB5TC, CUB5RT
SP2
NO
Setpoint 2
SPt-2
SP1
NO
Setpoint 1
SPt-1
MIN
NO
Minimum
LO
MAX
NO
Maximum
HI
INP
YES
Input
INP
MNEMONIC
FACTORY
SETTING
DESCRIPTIONDISPLAY

K
934 www.redlion.net
Sending Serial Commands and Data
When sending commands to the meter, a string containing at least one
command character must be constructed. A command string consists of a
command character, a value identifier, numerical data (if writing data to the
meter) followed by a command terminator character, * or $.
Command Chart
Command String Construction
The command string must be constructed in a specific sequence. The meter
does not respond with an error message to illegal commands. The following
procedure details construction of a command string:
1. The first 2 or 3 characters consist of the Node Address Specifier (N) followed
by a 1 or 2 character node address number. The node address number of the
meter is programmable. If the node address is 0, this command and the node
address itself may be omitted. This is the only command that may be used in
conjunction with other commands.
2. After the optional address specifier, the next character is the command
character.
3. The next character is the register ID. This identifies the register that the
command affects. The P command does not require a register ID character. It
prints all the active selections chosen in the Print Options menu parameter.
4. If constructing a value change command (writing data), the numeric data is
sent next.
5. All command strings must be terminated with the string termination
characters * or $. The meter does not begin processing the command string
until this character is received. See Command Response Time section for
differences in meter response time when using the * and $ terminator.
Register Identification Chart
Analog Models - CUB5V, CUB5I, CUB5P, CUB5TC, CUB5RT
Command String Examples:
1. Node address = 17, Write 350 to the setpoint 1 value
String: N17VD350*
2. Node address = 5, Read input, response time of 50 msec min
String: N5TA*
3. Node address = 0, Reset Setpoint 1 output
String: RD*
4. Node address = 31, Request a Block Print Output, response time of 2 msec min
String: N31P$
Transmitting Data to the Meter
Numeric data sent to the meter must be limited to transmit details listed in the
Register Identification Chart. Leading zeros are ignored. Negative numbers
must have a minus sign. The meter ignores any decimal point and conforms the
number to the scaled resolution. (For example: The meter’s scaled decimal point
position is set for 0.0 and 25 is written to a register. The value of the register is
now 2.5. In this case, write a value of 250 to equal 25.0).
Note: Since the meter does not issue a reply to value change commands, follow
with a transmit value command for readback verification.
Initiates a block print output. Registers in the
print block are selected in Print Options.
Block Print Request
(read)
P
Reset a register value or setpoint output.
Must be followed by a register ID character
ResetR
Write to register of the meter. Must be
followed by a register ID character and
numeric data.
Value Change (write)V
Read a register from the meter. Must be
followed by a register ID character.
Transmit Value (read)T
Address a specific meter. Must be followed by
one or two digit node address. Not required
when node address = 0.
Node (meter)
Address Specifier
N
NotesDescriptionCommand
T, R, V,
T, R, V
T, R
T, R
T
Transmit Details (T and V)
5 digit positive/4 digit negativeSP2E
SP1D
5 digitMINMinimumC
5 digitMAXMaximumB
5 digitINPInputA
Applicable
Commands
MNEMONICValue DescriptionID
5 digit positive/4 digit negative
Setpoint 1
(Reset output 1)
Setpoint 2
(Reset output 2)
Receiving Data From The Meter
Data is transmitted from the meter in response to either a transmit command
(T), a block print request command (P) or a User Input print request. The
response from the meter is either a full field transmission or an abbreviated
transmission, depending on the selection chosen in Module 5.
Full Field Transmission
* These characters only appear in the last line of a block print.
The first two characters transmitted are the meter address. If the address
assigned is 0, two spaces are substituted. A space follows the meter address field.
The next three characters are the register mnemonic, as shown in the Register
Identification Chart.
The numeric data is transmitted next. The numeric field (bytes 7 to 15) is 9
characters long. When a requested display value exceeds the meter’s display
limits, decimal points are sent in place of numerical data to indicate a display
overrange.
The remaining 7 positions of this field consist of a minus sign (for negative
values), a floating decimal point (if applicable), and five positions for the
requested value. The data within bytes 9 to 15 is right-aligned with leading
spaces for any unfilled positions.
The end of the response string is terminated with a <CR> and <LF>. After the
last line of a block print, an extra <SP>, <CR> and <LF> are added to provide
separation between the print blocks.
Abbreviated Transmission
* These characters only appear in the last line of a block print.
The abbreviated response suppresses the node address and the register
mnemonic, leaving only the numeric part of the response.
Meter Response Examples (Analog models):
1. Node address = 17, full field response, Input = 875
17 INP 875 <CR><LF>
2. Node address = 0, full field response, Setpoint 1 = -250.5
SP1 -250.5<CR><LF>
3. Node address = 0, abbreviated response, Setpoint 2 = 250, last line of block
print 250<CR><LF><SP><CR><LF>
Byte Description
1, 2 2 byte Node Address field [00-99]
3<SP> (Space)
4-6 3 byte Register Mnemonic field
7-15
16 <CR> (carriage return)
17 <LF> (line feed)
18 <SP>* (Space)
19 <CR>* (carriage return)
20 <LF>* (line feed)
9 byte data field; 7 bytes for number, one byte for sign, one byte for
decimal point
Byte Description
1-9 9 byte data field, 7 bytes for number, one byte for sign, one
byte for decimal point
10 <CR> (carriage return)
11 <LF> (line feed)
12 <SP>* (Space)
13 <CR>* (carriage return)
14 <LF>* (line feed)

K
9351-717-767-6511
Command Response Time
The meter can only receive data or transmit data at any one time (half-duplex
operation). During RS232 transmissions, the meter ignores commands while
transmitting data, but instead uses RXD as a busy signal. When sending
commands and data to the meter, a delay must be imposed before sending
another command. This allows enough time for the meter to process the
command and prepare for the next command.
At the start of the time interval t1, the computer program prints or writes the
string to the com port, thus initiating a transmission. During t1, the command
characters are under transmission and at the end of this period, the command
terminating character (* or $) is received by the meter. The time duration of t1
is dependent on the number of characters and baud rate of the channel.
t1= (10 times the # of characters) / baud rate
At the start of time interval t2, the meter starts the interpretation of the
command and when complete, performs the command function. This time
interval t2varies. If no response from the meter is expected, the meter is ready
to accept another command.
If the meter is to reply with data, the time interval t2is controlled by the use
of the command terminating character. The ‘*’ terminating character results in
a response time of 50 msec. minimum. This allows sufficient time for the
release of the sending driver on the RS485 bus. Terminating the command line
with ‘$’ results in a response time (t2) of 2 msec. minimum. The faster response
time of this terminating character requires that sending drivers release within 2
msec. after the terminating character is received.
At the beginning of time interval t3, the meter responds with the first
character of the reply. As with t1, the time duration of t3is dependent on the
number of characters and baud rate of the channel. At the end of t3, the meter is
ready to receive the next command.
t3= (10 times the # of characters) / baud rate
The maximum serial throughput of the meter is limited to the sum of the
times t1, t2and t3.
Timing Diagram Figure
Communication Format
Data is transferred from the meter through a serial communication channel.
In serial communications, the voltage is switched between a high and low level
at a predetermined rate (baud rate) using ASCII encoding. The receiving device
reads the voltage levels at the same intervals and then translates the switched
levels back to a character. The voltage level conventions depend on the interface
standard. The table lists the voltage levels for each standard.
Data is transmitted one byte at a time with a variable idle period between
characters (0 to ∞). Each ASCII character is “framed” with a beginning start bit,
an optional parity bit and one or more ending stop bits. The data format and
baud rate must match that of other equipment in order for communication to
take place. The figures list the data formats employed by the meter.
Start Bit and Data Bits
Data transmission always begins with the start bit. The start bit signals the
receiving device to prepare for reception of data. One bit period later, the least
significant bit of the ASCII encoded character is transmitted, followed by the
remaining data bits. The receiving device then reads each bit position as they are
transmitted.
Parity Bit
After the data bits, the parity bit is sent. The transmitter sets the parity bit to
a zero or a one, so that the total number of ones contained in the transmission
(including the parity bit) is either even or odd. This bit is used by the receiver
to detect errors that may occur to an odd number of bits in the transmission.
However, a single parity bit cannot detect errors that may occur to an even
number of bits. Given this limitation, the parity bit is often ignored by the
receiving device. The CUB5 meter ignores the parity bit of incoming data and
sets the parity bit to odd, even or none (mark parity) for outgoing data.
Stop Bit
The last character transmitted is the stop bit. The stop bit provides a single bit
period pause to allow the receiver to prepare to re-synchronize to the start of a
new transmission (start bit of next byte). The receiver then continuously looks
for the occurrence of the start bit. If 7 data bits and no parity is selected, then 2
stop bits are sent from the meter.
Character Frame Figure
LOGIC RS232* RS485*INTERFACE STATE
1TXD,RXD; -3 to -15 V a-b < -200 mVmark (idle)
0TXD,RXD; +3 to +15 V a-b > +200 mVspace (active)
* Voltage levels at the Receiver

K
936 www.redlion.net
INSTALLING AN OPTION CARD
CAUTION: The option and main circuit cards contain static sensitive
components. Before handling the cards, discharge static charges
from your body by touching a grounded bare metal object. Ideally,
handle the cards at a static controlled clean workstation. Also,
handle the cards by the edges only. Dirt, oil or other contaminants
that may contact the cards can adversely affect circuit operation.
WARNING: Exposed line voltage exists on the circuit boards. Remove
all power to the meter AND load circuits before accessing the unit.
1. Remove the main assembly from the rear of the case. Squeeze the finger
holds on the rear cover, or use a small screwdriver to depress the side latches
to release it from the case. It is not necessary to separate the rear cover from
the main circuit card.
2. Locate the option card connector for the type of option card to be installed.
Hold the unit by the rear connector, not the display board, when installing an
option card.
3. Install the option card by aligning the option card connector with the slot bay
in the rear cover. The cards are keyed by position with different main board
connector locations. Be sure the connector is fully engaged and the tab on
the option card rests in the alignment slot on the display board.
4. Slide the assembly back into the case. Be sure the rear cover latches fully into
the case.
5. Perform USB driver installation below prior to powering the PAX and
connecting PAXUSB to PC USB port.
DESCRIPTION
This bulletin serves as a guide for the installation, configuration and operation
of the PAX USB Programming plug-in card. The plug-in card is a separately
purchased option card that plug into the main circuit board of the meter. The
PAX USB card in conjunction with the Crimson®programming software
enables the user to configure a PAX on a PC. The PAXUSB requires installation
of drivers which are included with the Crimson Programming software.
Following installation of the drivers, the card appears as a Virtual
communications port.
Crimson is a Windows® based program that allows configuration of the
PAX® meters from a PC. Crimson offers standard drop-down menu commands,
that make it easy to program the PAX meters. The PAX program can then be
saved in a PC file for future use. A PAX serial plug-in card is required to
program the meter using the software.
MODEL PAXUSB - USB PROGRAMMING OPTION CARD
USB DRIVER INSTALLATION
1. Download and install the latest Crimson 2 build on your Windows®compatible
PC. Earlier builds may not have the RLC Virtual Comm port drivers. Crimson
software is available as a free download at http://www.redlion.net.
2. Install PAXUSB card into the meter and apply power to the PAX.
3. Connect Type A to mini B USB cable to computer and PAX option card.
Windows will prompt you for the location of the drivers for the device. The
default location for these drivers is “C:\Program Files\Red Lion
controls\Crimson 2.0\Device.” When the hardware setup appears, choose
“Install from a list or Specific location,” click Next, and then check “Include
this location...” and click the Browse button. Point the Wizard at the location
specified above or whatever other location you specified during installation
of the software. It is important that you perform this step correctly, or you
may have to manually remove the drivers using the Device Manager, and
repeat the installation once more.
Note: Crimson’s USB drivers have not been digitally signed by Microsoft®,
and you will therefore see a dialog offering you the chance to stop the
installation. You should be sure to select the Continue option to indicate
that you do indeed wish to install the drivers.
4. Windows will automatically assign a comms port to the PAXUSB. To
determine the port assigned, open “System Properties” from within
Windows®Control Panel. Select the Hardware tab, and click the “Device
Manager” button. Expand the “Ports” line. Take note of which Comms port
is assigned to “RLC Virtual Comm port”. It must be Com4 or lower to operate
with Crimson 2. If higher, right-click on the entry and select “Properties,”
“Port Settings” tab, and then “Advanced” button. Select a Coms port that is
COM4 or lower and is not physically being used.
SPECIFICATIONS
PAXUSB PROGRAMMING CARD
Type: USB Virtual Comms Port
Isolation To Sensor & User Input Commons: 500 Vrms for 1 min.
Working Voltage: 50 V. Not Isolated from all other commons.
PAXH Isolation:
Isolation To Sensor Common: 1400 Vrms for 1 min.
Working Voltage: 125 V
Isolation To User Input Common: 500 Vrms for 1 min.
Working Voltage: 50 V
Baud Rate: 300 to 19.2k
Unit Address: 0 to 99; only 1 meter can be configured at a time
CRIMSON 2 SYSTEM REQUIREMENTS
• Windows 2000, XP, or Vista
• RAM and free disk space as required by the chosen operating system.
• An additional 50 MB of disk space for software installation.
• A display of at least 800 by 600 pixels
• A USB port for downloading to the PAX
ORDERING INFORMATION
* Crimson software is available for download from http://www.redlion.net/
MODEL NO. DESCRIPTION PART NUMBER
SFCRD*
CBLUSB
PAXUSB
Crimson 2 PC Configuration Software for
Windows 98, ME, 2000 and XP
Type A to mini B USB Cable
PAX USB Programming Card
SFCRD200
CBLUSB01
PAXUSB00
TOP VIEW

K
9371-717-767-6511
* - Disregard these parameters when configuring unit to upload or download wth
Crimson software.
ª
«
ª
«
DATA BIT *
ª
«
ª
«
ABBREVIATED PRINTING *
PRINT OPTIONS *
ª
«
PARITY BIT *
ª
«
METER ADDRESS
300 1200
600 2400
192004800
9600
7 8
Odd EVEN NO
0 to 99
YES NO
YES NO
It is necessary to match the PAX meter’s serial communications parameters
to the host’s parameters before communications can be established. This is
accomplished by using the PAX front panel keys to enter .
The only paramters of concern when utilizing the PAXUSB programming
option card to communicate with Crimson 2 programming software is the Baud
Rate and Meter Address. The Parameters are only accessible when an optional
PAXUSB, RS232 or RS485 serial communications card is installed.
MODULE 7 - SERIAL COMMUNICATIONS PARAMETERS (4S-)
PARAMETER MENU
BAUD RATE
Indicates Program Mode Alternating Display.
Factory Settings are shown.
ª
«
Parameter
Selection/Value
Set the baud rate to match that of other serial communications equipment.
Normally, the baud rate is set to the highest value that all of the serial
communications equipment is capable of transmitting.
Select either 7 or 8 bit data word lengths. Set the word length to match that
of other serial communication equipment. Since the meter receives and
transmits 7-bit ASCII encoded data, 7 bit word length is sufficient to request
and receive data from the meter.
Set the parity bit to match that of the other serial communications equipment
used. The meter ignores the parity when receiving data, and sets the parity bit
for outgoing data. If no parity is selected with 7-bit word length the meter
transmits and receives data with 2 stop bits. (For example: 10 bit frame with
mark parity)
Enter the serial node address. With a single unit on a bus, an address is not
needed and a value of zero can be used (RS232 applications). Otherwise, with
multiple bussed units, a unique address number must be assigned to each meter.
The node address applies specifically to RS485 applications.
Select abbreviated transmissions (numeric only) or full field transmission.
When the data from the meter is sent directly to a terminal for display, the extra
characters that are sent identify the nature of the meter parameter displayed. In
this case, select . When the data from the meter goes to a computer, it may be
desirable to suppress the node address and mnemonic when transmitting. In this
case, set this parameter to .
- Enters the sub-menu to select those meter parameters to appear in the
block print. For each parameter in the sub-menu select for the parameter to
appear with the block print, and to disable the parameter.
* - Disregard these parameters when configuring unit to upload or download wth Crimson.

K
938 www.redlion.net
ORDERING INFORMATION
INSTALLING AN OPTION CARD
Caution: The option and main circuit cards contain static sensitive
components. Before handling the cards, discharge static charges
from your body by touching a grounded bare metal object. Ideally,
handle the cards at a static controlled clean workstation. Also,
handle the cards by the edges only. Dirt, oil or other contaminants
that may contact the cards can adversely affect circuit operation.
Warning: Exposed line voltage exists on the circuit boards. Remove
all power to the meter AND load circuits before accessing the unit.
1. Remove the main assembly from the rear of the case. Squeeze the finger
holds on the rear cover, or use a small screwdriver to depress the side
latches to release it from the case. It is not necessary to separate the rear
cover from the main circuit card.
2. Locate the option card connector for the type of option card to be installed.
Hold the unit by the rear connector, not the display board, when installing
an option card.
3. Install the option card by aligning the option card connector with the slot
bay in the rear cover. The cards are keyed by position with different main
board connector locations. Be sure the connector is fully engaged and the
tab on the option card rests in the alignment slot on the display board.
4. Slide the assembly back into the case. Be sure the rear cover latches fully
into the case.
5. Apply the option card label to the bottom side of the meter. Do not cover
the vents on the top surface of the meter. The surface of the case must be
clean for the label to adhere properly. Apply the label to the area designated
by the large case label.
DESCRIPTION
This bulletin serves as a guide for the installation, configuration and
operation of the RS232 and RS485 cards for the PAX family of meters. Only
one communication card can be used at a time.
The PAX meter can be fitted with up to three different option cards. The slot
bays of the option cards are dedicated to a particular card function. The option
card functions are: serial communications, analog output and setpoint output.
Only one card from each function category can be installed into the meter.
MODEL PAXCDC -SERIAL COMMUNICATIONS PLUG-IN OPTION CARDS
TOP VIEW
MODEL PART NUMBERDESCRIPTION
PAXCDC
PAXCDC10
PAXCDC1C
PAXCDC20
PAXCDC2C
Extended RS232 Serial Communications Output
Card with 9 Pin D Connector
RS485 Serial Communications Output Card with
Terminal Block
RS232 Serial Communications Output Card with
Terminal Block
Extended RS485 Serial Communications Output
Card with Dual RJ11 Connector

K
9391-717-767-6511
RS232 Communications
RS232 is intended to allow only two devices to communicate over distances up
to 50 feet. Data Terminal Equipment (DTE) transmits data on the Transmitted
Data (TXD) line and receives data on the Received Data (RXD) line. Data
Computer Equipment (DCE) receives data on the TXD line and transmits data on
the RXD line. The PAX emulates a DTE. If the other device connected to the
meter also emulates a DTE, the TXD and RXD lines must be interchanged for
communications to take place. This is known as a null modem connection. Most
printers emulate a DCE device while most computers emulate a DTE device.
Some devices cannot accept more than two or three characters in succession
without a pause in between. In these cases, the meter employs a busy function.
As the meter begins to transmit data, the RXD line (RS232) is monitored to
determine if the receiving device is “busy”. The receiving device asserts that it
is busy by setting the RXD line into a space condition (logic 0). The meter then
suspends transmission until the RXD line is released by the receiving device.
RS485 Communications
The RS485 communication standard allows the connection of up to 32
devices on a single pair of wires, distances up to 4,000 ft. and data rates as high
as 10M baud (the PAX is limited to 19.2k baud). The same pair of wires is used
to both transmit and receive data. An RS485 bus is therefore always half-duplex,
that is, data cannot be received and transmitted simultaneously.
WIRING CONNECTIONS
Terminal Block Connection Figure
Extended Comms Connection Figure
Extended Comms Connection Figure
12
12
B(-)
33K
33K
33K
33K
+5V
+5V
Transmit
Transmit
Enable
Enable
PAX METER
PAX METER
RECEIVING DEVICE
RECEIVING DEVICE
A
(+)
(+)
COMM.
COMM. *
NC
NC
*
OPTIONAL
OPTIONAL
13
13
14
14
15
15
Terminal Block Connection Figure
SPECIFICATIONS
PAXH Isolation For Both Cards:
Isolation To Sensor Common: 1400 Vrms for 1 min.
Working Voltage: 125 V
Isolation To User Input Common: 500 Vrms for 1 min.
Working Voltage: 50 V
RS485 Communication Card
Type: RS485 multi-point balanced interface
Isolation To Sensor & User Input Commons: 500 Vrms for 1 min.
Working Voltage: 50 V. Not Isolated from all other commons.
Baud Rate: 300 to 19.2k
Data Format: 7/8 bits; odd, even, or no parity
Bus Address: 0 to 99, max 32 meters per line
Transmit Delay: Selectable; 2 - 50 msec or 50 - 100 msec
RS232 Communication Card
Type: RS232 half duplex
Isolation To Sensor & User Input Commons: 500 Vrms for 1 min.
Working Voltage: 50 V. Not Isolated from all other commons.
Baud Rate: 300 to 19.2k
Data Format: 7/8 bits; odd, even or no parity

K
940 www.redlion.net
ª
«
ª
«
DATA BIT
ª
«
ª
«
ABBREVIATED PRINTING
PRINT OPTIONS
ª
«
PARITY BIT
ª
«
METER ADDRESS
300 1200
600 2400
192004800
9600
7 8
Odd EVEN NO
0 to 99
YES NO
YES NO
Input Value
Max and Min Values
Total Value
It is necessary to match the PAX meter’s serial communications parameters
to the host’s parameters before communications can be established. This is
accomplished by using the PAX front panel keys to enter .
MODULE 7 - SERIAL COMMUNICATIONS PARAMETERS (4S-)
PARAMETER MENU
BAUD RATE
Setpoint values*
Indicates Program Mode Alternating Display.
Factory Settings are shown.
ª
«
Parameter
Selection/Value
Set the baud rate to match that of other serial communications equipment.
Normally, the baud rate is set to the highest value that all of the serial
communications equipment is capable of transmitting.
Select either 7 or 8 bit data word lengths. Set the word length to match that
of other serial communication equipment. Since the meter receives and
transmits 7-bit ASCII encoded data, 7 bit word length is sufficient to request
and receive data from the meter.
Set the parity bit to match that of the other serial communications equipment
used. The meter ignores the parity when receiving data, and sets the parity bit
for outgoing data. If no parity is selected with 7-bit word length the meter
transmits and receives data with 2 stop bits. (For example: 10 bit frame with
mark parity)
Enter the serial node address. With a single unit on a bus, an address is not
needed and a value of zero can be used (RS232 applications). Otherwise, with
multiple bussed units, a unique address number must be assigned to each meter.
The node address applies specifically to RS485 applications.
Select abbreviated transmissions (numeric only) or full field transmission.
When the data from the meter is sent directly to a terminal for display, the extra
characters that are sent identify the nature of the meter parameter displayed. In
this case, select . When the data from the meter goes to a computer, it may be
desirable to suppress the node address and mnemonic when transmitting. In this
case, set this parameter to .
- Enters the sub-menu to select those meter parameters to appear in the
block print. For each parameter in the sub-menu select for the parameter to
appear with the block print, and to disable the parameter.
*Setpoints 1-4 are setpoint plug-in card dependent.

K
9411-717-767-6511
Sending Commands and Data
When sending commands to the meter, a string containing at least one
command character must be constructed. A command string consists of a
command character, a value identifier, numerical data (if writing data to the
meter) followed by a the command terminator character * or $.
Command Chart
Register Identification Chart
Command Description Notes
NNode Address
Specifier
Address a specific meter. Must be followed by
one or two digit node address. Not required
when node address = 0.
TTransmit Value (read) Read a register from the meter. Must be
followed by register ID character.
VValue change (write)
Write to register of the meter. Must be
followed by register ID character and numeric
data.
RReset Reset a register or output. Must be followed
by register ID character
PBlock Print Request
(read)
Initiates a block print output. Registers are
defined in programming.
ID Value Description Register
ID Applicable Commands/Comments
A Input INP
BTota l TOT (Reset command resets total to
zero)
CMax Input MAX (Reset command resets MAX to
current reading)
DMin Input MIN (Reset command resets MIN to
current reading)
ESetpoint 1 SP1 (Reset command resets the
setpoint output)
FSetpoint 2 SP2 (Reset command resets the
setpoint output)
GSetpoint 3 SP3 (Reset command resets the
setpoint output)
H Setpoint 4 SP4 (Reset command resets the
setpoint output)
IAnalog Output
Register AOR (Applies to manual mode)
JControl Status
Register CSR
T, P
T, P, R
T, P, R
T, P, R
T, P, V, R
T, P, V, R
T, P, V, R
T, P, V, R
T, V
T, V
Command String Construction
The command string must be constructed in a specific sequence. The meter
does not respond with an error message to illegal commands. The following
procedure details construction of a command string:
1. The first 2 or 3 characters consist of the Node Address Specifier (N) followed
by a 1 or 2 character node address number. The node address number of the
meter is programmable. If the node address is 0, this command and the node
address itself may be omitted. This is the only command that may be used in
conjunction with other commands.
2. After the optional address specifier, the next character is the command
character.
3. The next character is the register ID. This identifies the register that the
command affects. The P command does not require a register ID character. It
prints according to the selections made in print options.
4. If constructing a value change command (writing data), the numeric data is
sent next.
5. All command strings must be terminated with the string termination
characters * or $. The meter does not begin processing the command string
until this character is received. See timing diagram figure for differences of
* and $ terminating characters.
Command String Examples:
1. Node address = 17, Write 350 to Setpoint 1, response delay of 2 msec min
String: N17VE350$
2. Node address = 5, Read Input value, response delay of 50 msec min
String: N5TA*
3. Node address = 0, Reset Setpoint 4 output, response delay of 50 msec min
String: RH*
Sending Numeric Data
Numeric data sent to the meter must be limited to 5 digits (-19,999 to
99,999). If more than 5 digits are sent, the meter accepts the last 5. Leading
zeros are ignored. Negative numbers must have a minus sign. The meter ignores
any decimal point and conforms the number to the scaled resolution. (For
example: the meter’s scaled decimal point position = 0.0 and 25 is written to a
register. The value of the register is now 2.5 In this case, write a value = 25.0).
Note: Since the meter does not issue a reply to value change commands, follow
with a transmit value command for readback verification.
Receiving Data
Data is transmitted by the meter in response to either a transmit command
(T), a print block command (P) or User Function print request. The response
from the meter is either a full field transmission or an abbreviated transmission.
In this case, the response contains only the numeric field. The meter response
mode is established in programming.
Full Field Transmission
* These characters only appear in the last line of a block print.
The first two characters transmitted are the node address, unless the node
address assigned =0, in which case spaces are substituted. A space follows the
node address field. The next three characters are the register ID (Serial
Mnemonic).
The numeric data is transmitted next. The numeric field is 12 characters long
(to accommodate the 10 digit totalizer), with the decimal point position floating
within the data field. Negative value have a leading minus sign. The data field
is right justified with leading spaces.
The end of the response string is terminated with a carriage return <CR> and
<LF>. When block print is finished, an extra <SP><CR> <LF> is used to
provide separation between the blocks.
Abbreviated Transmission
* These characters only appear in the last line of a block print.
The abbreviated response suppresses the node address and register ID,
leaving only the numeric part of the response.
Meter Response Examples:
1. Node address = 17, full field response, Input = 875
17 INP 875 <CR><LF>
2. Node address = 0, full field response, Setpoint 2 = -250.5
SP2 -250.5<CR><LF>
3. Node address = 0, abbreviated response, Setpoint 2 = 250, last line of block
print
250<CR><LF><SP><CR><LF>
Byte Description
1, 2 2 byte Node Address field [00-99]
3<SP> (Space)
4-6 3 byte Register Mnemonic field
7-18
19 <CR> carriage return
20 <LF> line feed
21 <SP>* (Space)
22 <CR>* carriage return
23 <LF>* line feed
Byte Description
1-12 12 byte data field, 10 bytes for number, one byte for sign,
one byte for decimal point
13 <CR> carriage return
14 <LF> line feed
15 <SP>* (Space)
16 <CR>* carriage return
17 <LF>* line feed
12 byte data field; 10 bytes for number, one byte for sign, one byte for
decimal point (The T command may be a different byte length)

K
942 www.redlion.net
(CSR) Control Status Register
The Control Status Register is used to both directly control the meter’s
outputs (setpoints and analog output), and interrogate the state of the setpoint
outputs. The register is bit mapped with each bit position within the register
assigned to a particular control function. The control function are invoked by
writing to each bit position. The bit position definitions are:
Although the register is bit mapped starting with bit 7, HEX < > characters
are sent in the command string. Bits 7 and 5 always stay a zero, even if a “1” is
sent. This allows ASCII characters to be used with terminals that may not have
extended character capabilities.
Writing a “1” to bit 4 of CSR selects manual mode. In this mode, the setpoint
outputs are defined by the values written to the bits b0, b1, b2, b3; and the
analog output is defined by the value written to the AOR. Internal control of
these outputs is then overridden.
In automatic mode, the setpoint outputs can only be reset off. Writing to the
setpoint output bits of the CSR has the same effect as a Reset command (R).
The contents of the CSR may be read to interrogate the state of the setpoint
outputs and to check the status of the temperature sensor (PAXT only).
Examples:
1. Set manual mode, turn all setpoints off:
V is command write, J is CSR and * is terminator.
2. Turn SP1, SP3 outputs on and SP2, SP4 outputs off:
3. Select Automatic mode:
Note: Avoid writing values <0A> (LF), <0D> (CR), <24> ($) and <2E> (*)
to the CSR. These values are interpreted by the meter as end of command
control codes and will prematurely end the write operation.
(AOR) Analog Output Register
The Analog Output Register controls the analog output of the meter. The
manual mode must first be engaged by setting bit 4 of the Control Status
Register. The range of values of this register is 0 to 4095, which corresponds to
0 mA, 0 V and 20 mA, 10 V; respectively. The table lists correspondence of the
output signal with the register value.
*Due to the absolute accuracy
rating and resolution of the output
card, the actual output signal may
differ 0.15% FS from the table
values. The output signal
corresponds to the range selected
(20 mA or 10 V).
Writing to this register while the meter is in the manual mode causes the
output signal to update immediately. While in the automatic mode, this register
may be written to, but the output will not update until the meter is placed in
manual mode.
Examples:
1. Set output to full scale:
VI4095*
2. Set output to zero scale:
VI0*
bit 0: Setpoint 1 Output Status
0 = output off
1 = output on
bit 1: Setpoint 2 Output Status
0 = output off
1 = output on
bit 2: Setpoint 3 Output Status
0 = output off
1 = output on
bit 3: Setpoint 4 Output Status
0 = output off
1 = output on
bit 4: Manual Mode
0 = automatic mode
1 = manual mode
bit 5: Always stays 0, even if 1 is sent.
bit 6: Sensor Status (PAXT only)
0 = sensor normal
1 = sensor fail
bit 7: Always stays 0, even if 1 is sent.
SERIAL COMMANDS FOR PAX SOFTWARE
76543210:bit location
VJ<30>* or VJ0* ASCII 0 = 00110000or <30>
VJ<35>* or VJ5* or <35>10101100ASCII 5 =
0:bit location1234567
VJ<40>* or VJ@* or <40>00000010ASCII @ =
0:bit location1234567
Command Response Time
The meter can only receive data or transmit data at any one time (half-duplex
operation). The meter ignores commands while transmitting data, but instead
uses RXD as a busy signal. When sending commands and data to the meter, a
delay must be imposed before sending another command. This allows enough
time for the meter to process the command and prepare for the next command.
At the start of the time interval t1, the computer program prints or writes the
string to the com port, thus initiating a transmission. During t1, the command
characters are under transmission and at the end of this period, the command
terminating character (*) is received by the meter. The time duration of t1is
dependent on the number of characters and baud rate of the channel.
t1= (10 * # of characters) / baud rate
At the start of time interval t2, the meter starts the interpretation of the
command and when complete, performs the command function. This time
interval t2varies from 2 msec to 50 msec. If no response from the meter is
expected, the meter is ready to accept another command.
If the meter is to reply with data, the time interval t2is controlled by the use
of the command terminating character. The standard command line terminating
character is ‘*’. This terminating character results in a response time window of
50 msec minimum and 100 msec maximum. This allows sufficient time for the
release of the sending driver on the RS485 bus. Terminating the command line
with ‘$’ results in a response time window (t2) of 2 msec minimum and 50 msec
maximum. The faster response time of this terminating character requires that
sending drivers release within 2 msec after the terminating character is received.
At the beginning of time interval t3, the meter responds with the first
character of the reply. As with t1, the time duration of t3is dependent on the
number of characters and baud rate of the channel. t3= (10 * # of characters) /
baud rate. At the end of t3, the meter is ready to receive the next command.
The maximum serial throughput of the meter is limited to the sum of the
times t1, t2and t3.
Timing Diagram Figure
Register Value Output Signal*
I(mA) V (V)
0.0000.0000
10.005 0.0025
5.00010.0002047
4094 19.995 9.9975
10.00020.0004095

K
9431-717-767-6511
Communication Format
Data is transferred from the meter through a serial communication channel.
In serial communications, the voltage is switched between a high and low level
at a predetermined rate (baud rate) using ASCII encoding. The receiving device
reads the voltage levels at the same intervals and then translates the switched
levels back to a character.
The voltage level conventions depend on the interface standard. The table
lists the voltage levels for each standard.
Data is transmitted one byte at a time with a variable idle period between
characters (0 to ∞). Each ASCII character is “framed” with a beginning start bit,
an optional error detection parity bit and one or more ending stop bits. The data
format and baud rate must match that of other equipment in order for
communication to take place. The figures list the data formats employed by
the meter.
Start bit and Data bits
Data transmission always begins with the start bit. The start bit signals the
receiving device to prepare for reception of data. One bit period later, the least
significant bit of the ASCII encoded character is transmitted, followed by the
remaining data bits. The receiving device then reads each bit position as they
are transmitted. Since the sending and receiving devices operate at the same
transmission speed (baud rate), the data is read without timing errors.
Parity bit
After the data bits, the parity bit is sent. The transmitter sets the parity bit to
a zero or a one, so that the total number of ones contained in the transmission
(including the parity bit) is either even or odd. This bit is used by the receiver
to detect errors that may occur to an odd number of bits in the transmission.
However, a single parity bit cannot detect errors that may occur to an even
number of bits. Given this limitation, the parity bit is often ignored by the
receiving device. The PAX meter ignores the parity bit of incoming data and
sets the parity bit to odd, even or none (mark parity) for outgoing data.
Stop bit
The last character transmitted is the stop bit. The stop bit provides a single
bit period pause to allow the receiver to prepare to re-synchronize to the start of
a new transmission (start bit of next byte). The receiver then continuously looks
for the occurrence of the start bit.
Character Frame Figure
LOGIC RS232* RS485*INTERFACE STATE
1TXD,RXD; -3 to -15 V a-b < -200 mVmark (idle)
0TXD,RXD; +3 to +15 V a-b > +200 mVspace (active)
* Voltage levels at the Receiver

K
944 www.redlion.net
INSTALLING AN OPTION CARD
Caution: The option and main circuit cards contain static
sensitive components. Before handling the cards, discharge static
charges from your body by touching a grounded bare metal
object. Ideally, handle the cards at a static controlled clean
workstation. Also, only handle the cards by the edges. Dirt, oil or
other contaminants that may contact the cards can adversely
affect circuit operation.
Warning: Exposed line voltage exists on the circuit boards.
Remove all power to the meter AND load circuits before
accessing the unit.
1. Remove the main assembly from the rear of the case. Squeeze the finger
holds on the rear cover, or use a small screwdriver to depress the side
latches to release it from the case. It is not necessary to separate the rear
cover from the main circuit card.
2. Locate the option card connector for the type of option card to be
installed. Hold the unit by the rear connector, not the display board, when
installing an option card.
3. Install the option card by aligning the option card connector with the slot
in the rear cover. The cards are keyed by position with different main
board connector locations. Be sure the connector is fully engaged and the
tab on the option card rests in the alignment slot on the display board.
4. Slide the assembly back into the case. Be sure the rear cover latches fully
into the case.
5. Apply the option card label to the bottom side of the meter. Do not cover
the vents on the top surface of the meter. The surface of the case must be
clean for the label to adhere properly. Apply the label to the area
designated by the large case label.
6. See manual for wiring connections and programming procedures.
DESCRIPTION
The DeviceNet Option Card (PAXCDC30) is designed for the PAX series of
meters. It fits into the Comms slot of any PAX meter and allows the meter to
communicate with a DeviceNet bus. The card supports Polling, Bit Strobe, and
Explicit Message Commands. The MAC ID and the Baud Rate are switch
adjustable via a DIP switch. A bicolor LED is used to indicate the meter’s status
in relationship to the bus.
MODEL PAXCDC -DEVICENET™ OUTPUT OPTION CARD
TOP VIEW
DIP SWITCHES
Both MAC ID and baud rate are set via DIP switches on the DeviceNet™
option card. See the DIP switch setting table for more details on these DIP
switches. Configuration of MAC ID and baud rate is not supported over
DeviceNet™.
NETWORK STATUS LEDs
The network status LEDs provide visual indication to the operator of the
DeviceNet™card’s current status.
ORDERING INFORMATION
MODEL NO. DESCRIPTION PART NUMBER
PAX DeviceNet™Output Card PAXCDC30PAXCDC

K
9451-717-767-6511
DeviceNet™ SPECIFICATIONS
POWER SUPPLY
Source: Supplied by DeviceNet™bus.
The bus does not power the host.
Voltage: 11 to 25 VDC.
Current:
Nominal: 40 mA at 25 VDC.
Inrush: 550 mA for 5 msec at 25 VDC.
*Power must be applied to the PAX meter before bus power is applied to
the card.
NETWORK SPECIFICS
Compatibility: Group 2 Server Only, not UCMM capable.
Baud Rates: 125 Kbaud, 250 Kbaud, and 500 Kbaud.
Bus Interface: Phillips 82C250 or equivalent with mis-wiring protection per
DeviceNet™Volume 1 Section 10.2.2.
Node Isolation: Bus powered, isolated node.
Host Isolation: 500 Vrms for 1 minute (50 V working) between DeviceNet™
and meter input common.
Bus Connection:
12 V+
13 CAN_H
14 CAN_L
15 V-
Shield: No Connection
INSTALLATION INFORMATION
Factory Settings:
Baud rate: 125 KBs.
MAC ID: 63
Strobe Register: 07h
Polling flags: All on.
Swap data flag: Off.
Store Flags: All on.
DIP SWITCH SETTING TABLE
CONNECTION SIZES
Device Profile: This product conforms to the DeviceNet™specification
Volumes I and II of version 2.0.
Device Configuration: No DeviceNet™configuration is supported.
However, some meter configuration is supported.
NETWORK STATUS LEDs
Flashing Red LED:
This device is the only device on the network (waiting for an
acknowledgment to its duplicate MAC ID check), or an I/O connection
has timed out, or a recoverable error has occurred.
Flashing Green LED:
The device is functioning correctly and is waiting to be commissioned
by a bus master.
Solid Red LED:
The device has encountered a non-recoverable fault, such as a duplicate
MAC ID response, and has removed itself from the bus, or the device is
in a power up reset state and is attempting to come on line.
Solid Green LED:
The device is on line, functioning correctly and has been commissioned
by a bus master.
SUPPORTED CONNECTIONS
Polled Command: The Polled Command consumes 6 bytes of data, and is used
to get, set, or reset attributes. The meter attribute is determined by the value
in byte 0 of the data field. Refer to the Attribute Identification Chart for the
appropriate value. Byte 1 determines the action: 0 = get, 1 = set, 2 = reset.
The next 4 bytes are the new attribute value for the set command. For get or
reset commands, enter 4 zeros. The data response from the Polled Command
is in the format of a 4 byte hexadecimal number. For the get command (0),
the response is the attribute value. For the set command (1), the response is
an echo of the data input. For the reset command (2), all 0s are returned.
Bit Strobe Command: The Bit Strobe Command consumes eight bytes of data,
or less. This is a read only predetermined meter attribute. The data response
from the Bit Strobe Command is in the format of a 4 byte hexadecimal
number. The register that will be read using the Bit Strobe command is
determined by setting Attribute 2, Instance 1, Class 100* (decimal) with a
value that represents the desired attribute. Refer to the Attribute Identification
Chart for the appropriate value.
*Class 100 (decimal) is a vendor specific class.
EXPLICIT MESSAGE COMMAND
Get Attribute: The attribute that will be read using the Get Attribute command
is determined by setting Service Code 14, Instance 1, Class 100* (decimal),
and the attribute with a value that represents the desired meter attribute. Refer
to the Attribute Identification Chart for the appropriate value. The data
response from the Get Attribute Command is in the format of a 4 byte
hexadecimal number.
Set Attribute: The attribute that will be set using the Set Attribute command is
determined by setting Service Code 16, Instance 1, Class 100* (decimal), and
the attribute with a value that represents the desired meter attribute. Refer to the
Attribute Identification Chart for the appropriate value. The data field for the
Set Attribute Command is entered as a 4 byte hexadecimal number.
Reset Attribute: The attribute that will be reset using the Reset Attribute
command is determined by setting Service Code 5, Instance 1, Class 100*
(decimal), and the attribute with a value that represents the desired meter
attribute. Refer to the Attribute Identification Chart for the appropriate value.
*Class 100 (decimal) is a vendor specific class.
Note: Not all meter attributes respond to a Set or Reset Attribute command.
Refer to the Attribute Identification Chart for details.
Vendor Specific Error Responses
MESSAGE PRODUCED CONSUMED
Explicit 4 Bytes 4 Bytes
Polled 4 Bytes 6 Bytes
Bit Strobe 4 Bytes 8 Bytes
CODE ERROR # ERROR CODE MEANING
1F (General Code) Vendor Specific Error
1 (Additional Code) Meter Response Time-out
2 (Additional Code) Vendor Service Not Supported
3 (Additional Code) Command String Syntax Error
SWITCH # SETTING
1 - 6
7 off, 8 off 125 K baud
7 on, 8 off 250 K baud
7 off, 8 on 500 K baud
7 on, 8 on N/A
MAC ID (all off = 0, all on = 63) Switch 1
is LSB (1), switch 6 is MSB (32).

K
946 www.redlion.net
Attribute Identification Chart
Data Swap: (1 byte), Attribute 1, Instance 1, Class 100 (decimal). Data is
normally sent and entered as follows: Pax display value = 500000 (7A120h).
4 byte value sent would be 20 A1 07 00. Setting the data swap value to 1
would result in the data being sent as 00 07 A1 20. This attribute can only be
set to 0 or 1, all other values are ignored. The factory setting value is 0. Data
Byte is saved in EEPROM memory.
DIP Switch Values: (1 byte), Attribute 6, Instance 1, Class 100 (decimal).
Returns the dip switch setting. Switch 1 = LSB, 1 = on.
Polling Flags: (3 bytes) Attribute 3 - 5, Instance 1, Class 100 (decimal). The
DeviceNet card is continually requesting values from the PAX unit. The
polling flags determine what values are requested during each loop. Setting
the flags to “1” enables the card to poll that particular value. A “0” value
disables it. Turning polling flags off allows the card to request fewer values
and therefore decreases the internal loop time, which allows the values that
are polled to be updated more often.
If a Set Attribute is executed for any value, that value is automatically
updated to the latest value, regardless of whether the polling flag is on or off.
On power up, all values are updated regardless of Polling flag settings.
Polling flag values are saved in EEPROM memory. Factory settings is “on”
for all Polling flags.
See Meter Attribute Identification Chart for polling flags.
Store Flags: (3 bytes) Attribute 26 - 28, Instance 1, Class 100 (decimal). This
set of flags determines whether the attribute is stored to EEPROM when a Set
or Reset service code is executed. If the flag is 0, the value is not saved to
EEPROM memory in the PAX. If the flag is 1, the value is saved immediately
to EEPROM memory in the PAX. Factory setting is “on” for all Store Flags.
The attributes are grouped in blocks. Storing one attribute may cause others
to be stored. If an attribute is SET frequently, its store flag should be set to 0
to increase EEPROM life.
MANUAL MODE DESCRIPTION
(CSR) Control Status Register [16] (PAX)
The Control Status Register is used to directly control the meter’s outputs
(setpoints and analog output), or view the state of the setpoint outputs and the
status of the temperature sensor (PAXT only). The attribute is bit mapped with
each bit position within the attribute assigned to a particular control function.
The control functions are invoked by writing to each bit position. The bit
position definitions are:
In Manual Mode, the setpoint outputs are defined by the values written to bits
b0, b1, b2, b3; and the analog output is defined by the value written to the AOR.
Internal control of these outputs is then overridden. In automatic mode, the
setpoint outputs can only be reset off.
Example:
1. Select manual mode for all outputs:
Value to write to attribute 16: 0010h
1 value – 52 msec
5 values – 230 msec1 value – 100 msec
10 values – 430 msec5 values – 500 msec
All values (19) – 750 msecAll values (10) – 1.00 sec
PAXI/PAXCK/PAXDPPAX
TYPICAL UPDATE TIMES
1 = manual mode
0 = automatic mode
bit 4: Manual Mode
bit 3: SP4 Output
bit 2: SP3 Output
bit 1: SP2 Output
bit 7: Always stays 0, even if 1 is sent.
1 = sensor fail
0 = sensor normal
bit 6: Sensor Status (PAXT only)
bit 5: Always stays 0, even if 1 is sent.bit 0: SP1 Output
0 = output off
1 = output on
⎫
⎬
⎭
VALUE DESCRIPTION SERVICE CODES SUPPORTED POLLING STORE
PAX PAXI PAXCK PAXDP PAX PAXI PAXCK PAXDP
1Data Swapping Flag G, S G, S G, S G, S N/A N/A
2Bit Strobe Attribute G, S G, S G, S G, S N/A N/A
3Polling Flags 1 G, S G, S G, S G, S N/A N/A
4Polling Flags 2 G, S G, S G, S G, S N/A N/A
5Polling Flags 3 N/A G, S G, S G, S N/A N/A
6DIP Switch GGGG N/A N/A
7 Input Count A Timer Input A (rel) GG, S, R G, S, R G, R Attr 3, bit 0 Attr 26, bit 0
8Tota l Count B Count Input B (rel) G, R G, S, R G, S, R G, R Attr 3, bit 1 Attr 26, bit 1
9Max Count C RTC Time Calc G, R G, S, R G, S GAttr 3, bit 2 Attr 26, bit 2
10 Min Rate RTC Date Tot al G, R G, S G, S G, R Attr 3, bit 3 Attr 26, bit 3
11 SP 1 Min SP 1 Min Input G, S, R G, S, R G, S, R G, R Attr 3, bit 4 Attr 26, bit 4
12 SP 2 Max SP 2 Max Input G, S, R G, S, R G, S, R G, R Attr 3, bit 5 Attr 26, bit 5
13 SP 3 Scale A SP 3 Input A (abs) G, S, R G, S G, S, R GAttr 3, bit 6 Attr 26, bit 6
14 SP 4 Scale B SP 4 Input B (abs) G, S, R G, S G, S, R GAttr 3, bit 7 Attr 26, bit 7
15 AOR Scale C SP 1 Off Input A (offset) G, S G, S G, S G, S Attr 4, bit 0 Attr 27, bit 0
16 CSR Load A SP 2 Off Input B (offset) G, S G, S G, S G, S Attr 4, bit 1 Attr 27, bit 1
17 ----- Load B SP 3 Off ----- ----- G, S G, S ----- Attr 4, bit 2 Attr 27, bit 2
18 ----- Load C SP 4 Off ----- ----- G, S G, S ----- Attr 4, bit 3 Attr 27, bit 3
19 ----- SP 1 Timer Start SP 1 ----- G, S, R G, S G, S, R Attr 4, bit 4 Attr 27, bit 4
20 ----- SP 2 Count Start SP 2 ----- G, S, R G, S G, S, R Attr 4, bit 5 Attr 27, bit 5
21 ----- SP 3 Timer Stop SP 3 ----- G, S, R G, S G, S, R Attr 4, bit 6 Attr 27, bit 6
22 ----- SP 4 Count Stop SP 4 ----- G, S, R G, S G, S, R Attr 4, bit 7 Attr 27, bit 7
23 ----- MMR MMR MMR ----- G, S G, S G, S Attr 5, bit 0 Attr 28, bit 0
24 ----- AOR RTC Day AOR ----- G, S G, S G, S Attr 5, bit 1 Attr 28, bit 1
25 ----- SOR SOR SOR ----- G, S G, S G, S Attr 5, bit 2 Attr 28, bit 2
26 Store Flags 1 G, S G, S G, S G, S N/A N/A
27 Store Flags 2 G, S G, S G, S G, S N/A N/A
28 Store Flags 3 N/A G, S G, S G, S N/A N/A

K
9471-717-767-6511
(MMR) Auto/Manual Mode Register [23] (PAXI/PAXCK/PAXDP)
This attribute sets the controlling mode for the outputs. In Auto Mode (0) the
meter controls the setpoint output. In Manual Mode (1) the outputs are defined
by the attribute SOR. When transferring from auto mode to manual mode, the
meter holds the last output value (until the attribute is changed by a write). Each
output may be independently changed to auto or manual. Select values to place
in manual mode by writing appropriate value to attribute 23. The bit position
definitions are:
Example:
1. Select manual mode for all outputs and AOR (PAXI, PAXDP):
Value to write to attribute 23: 001Fh
(SOR) Setpoint Output Register [25] (PAXI/PAXCK/PAXDP)
This attribute is used to view or change the states of the setpoint outputs.
Reading from this attribute will show the present state of all the setpoint outputs.
A “0” in the setpoint location means the output is inactive and a “1” means the
output is active.
In Automatic Mode (See MMR Description), the meter controls the setpoint
output state. In Manual Mode, writing to this attribute will change the output
state. The bit position definitions are:
Examples:
1. Turn all outputs on:
Value to write to attribute 25 - 000Fh.
2. Turn outputs 1, 3 on:
Value to write to attribute 25 - 0005h.
3. Turn all outputs off:
Value to write to attribute 25 - 0000h.
(AOR) Analog Output Register (Not PAXCK)
The Analog Output Register controls the analog output of the meter. The
manual mode must first be engaged by setting bit 4 of the CSR (PAX) or bit 0
of the MMR (PAXI). The range of values of this attribute is 0 to 4095, which
corresponds to 0 mA, 0 V and 20 mA, 10 V; respectively. If a value larger than
4095 is written to the AOR Attribute, 4095 will be loaded. The table lists
correspondence of the output signal with the attribute value.
*Due to the absolute accuracy rating
and resolution of the output card, the
actual output signal may differ 0.15% FS
from the table values. The output signal
corresponds to the range selected (20 mA
or 10 V).
Writing to this attribute while the meter is in the manual mode causes the output
signal to update immediately. While in the automatic mode, this attribute may be
written to, but the output will not update until the meter is placed in manual mode.
Examples:
1. Set output to full scale:
Value to write to attribute 15 (PAX) or attribute 24 (PAXI) - 0FFFh (4095).
2. Set output to zero scale:
Value to write to attribute 15 (PAX) or attribute 24 (PAXI) - 0000h (0).
MANUAL MODE DESCRIPTION (CONTINUED)
1
Attribute Value
0
2047
4094
4095
Output Signal*
V (V)
I(mA)
0.000 0.000
0.00250.005
10.000 5.000
19.995 9.9975
10.00020.000
bit 0: Analog Output
bit 1: SP4
bit 2: SP3
bit 3: SP2
bit 4: SP1
⎫
⎬
⎭
0 = Auto Mode
1 = Manual Mode
PAXI/PAXDP
bit 0: SP4
bit 1: SP3
bit 2: SP2
bit 3: SP1
⎫
⎬
⎭
0 = Auto Mode
1 = Manual Mode
PAXCK
bit 0: SP1
bit 1: SP2
bit 2: SP3
bit 3: SP4
⎫
⎬
⎭
0 = Output off
1 = Output on

K
948 www.redlion.net
INSTALLING AN OPTION CARD
Caution: The option and main circuit cards contain static
sensitive components. Before handling the cards, discharge
static charges from your body by touching a grounded bare metal
object. Ideally, handle the cards at a static controlled clean
workstation. Also, only handle the cards by the edges. Dirt, oil or
other contaminants that may contact the cards can adversely
affect circuit operation.
Warning: Exposed line voltage exists on the circuit boards.
Remove all power to the meter AND load circuits before
accessing the unit.
1. Remove the main assembly from the rear of the case. Squeeze the finger
holds on the rear cover, or use a small scewdriver to depress the side
latches to release it from the case. It is not necessary to separate the rear
cover from the main circuit card.
2. Locate the option card connector for the type of option card to be
installed. Hold the unit by the rear connector, not the display board, when
installing an option card.
3. Install the option card by aligning the option card connector with the slot
in the rear cover. The cards are keyed by position with different main
board connector locations. Be sure the connector is fully engaged and the
tab on the option card rests in the alignment slot on the display board.
4. Slide the assembly back into the case. Be sure the rear cover latches fully
into the case.
5. Apply the option card label to the bottom side of the meter. Do not cover
the vents on the top surface of the meter. The surface of the case must be
clean for the label to adhere properly. Apply the label to the area
designated by the large case label.
6. See manual for wiring connections and programming procedures.
DESCRIPTION
This product bulletin covers the MODBUS Communication Card for the PAX
Meters. The card will allow the PAX Meter to transmit Display Values,
Setpoints and Reset Values via MODBUS RS485 communication, in the RTU
and ASCII modes.
MODEL PAXCDC -MODBUS OUTPUT OPTION CARD
TOP VIEW
ORDERING INFORMATION
MODEL DESCRIPTION PART NUMBER
PAX MODBUS Output Card
PAXCDC4C
PAXCDC40
PAXCDC PAX MODBUS Output Card with RJ11 Connector
MODBUS SPECIFICATIONS
1. Type: RS485; RTU and ASCII MODBUS modes
2. Isolation To Sensor & User Input Commons: 500 Vrms for 1 minute.
Working Voltage: 50 V. Not isolated from all other commons.
3. Baud Rates: 300 to 38400.
4. Data: 7/8 bits
5. Parity: No, Odd, or Even
6. Addresses: 1 to 247.
7. Transmit Delay: Programmable; See Transmit Delay explanation.

K
9491-717-767-6511
SERIAL SET-UP DIP SWITCH OPERATION
Serial port configuration is accomplished through two banks of DIP switches
on the MODBUS card. The bank of 8 switches sets the Unit Address, the bank
of 7 switches sets the Serial port parameters (ASCII/RTU, 7/8 bits, Parity, and
Baud rate). Changes to the switch settings are only detected on power-up of the
unit. After changing a switch setting, power to the unit must be cycled for the
new switch setting to take effect.
Both unit address and serial set-up are set via DIP switches on the MODBUS
option card. See the DIP switch setting table for more details on these
DIP switches.
For the Unit Address bank, the high order bit is switch 1, and the ON
position is a ‘1’, the OFF position is a ‘0’. Legal unit addresses are 1 to 247.
When a Unit Address of 0 is selected, the card responds to Unit Address 1.
When a Unit Address of 248 through 255 is selected, the card responds to Unit
Address 247.
For the serial bank, the following settings apply:
BAUD RATE SWITCH SELECTIONS
SWITCH SETTINGS AVAILABLE
RTU1OFF: ASCII ON: RTU
8 Bits2OFF: 7 Bits ON: 8 Bits
No Parity3OFF: None ON: Parity
OFF4OFF: Even ON: Odd
5Baud Rate
9600
6Baud Rate (See Baud Rate
Switch Selections)
7Baud Rate
⎫
⎬
⎭
5 6 7
38400: ON ON ON
19200: ON ON OFF
9600: ON OFF ON
4800: ON OFF OFF
2400: OFF ON ON
1200: OFF ON OFF
600: OFF OFF ON
300: OFF OFF OFF
FACTORY
SETTINGS
12
12
B(-)
33K
33K
33K
33K
+5V
+5V
Transmit
Transmit
Enable
Enable
PAX METER
PAX METER
RECEIVING DEVICE
RECEIVING DEVICE
A
(+)
(+)
COMM.
COMM. *
NC
NC
*
OPTIONAL
OPTIONAL
13
13
14
14
15
15
Terminal Block Connection Figure
Extended Comms Connection Figure
RS485 COMMUNICATIONS
The RS485 communication standard allows the connection of up to 32
devices on a single pair of wires, distances up to 4,000 ft. and data rates as high
as 10M baud (the PAX is limited to 19.2k baud). The same pair of wires is used
to both transmit and receive data. RS485 is therefore always half-duplex, that
is, data cannot be received and transmitted simultaneously.

K
950 www.redlion.net
(CSR) Control Status Register [40021]
The Control Status Register is used to directly control the meter’s outputs
(setpoints and analog output), or view the state of the setpoint outputs and the
status of the temperature sensor (PAXT only). The register is bit mapped with
each bit position within the register assigned to a particular control function. The
control functions are invoked by writing to each bit position. The bit position
definitions are:
In Manual Mode, the setpoint outputs are defined by the values written to bits
b0, b1, b2, b3; and the analog output is defined by the value written to the AOR.
Internal control of these outputs is then overridden. In automatic mode, the
setpoint outputs can only be reset off.
(MMR) Auto/Manual Mode Register [40036] (PAXI/PAXCK)
This register sets the controlling mode for the outputs. In Auto Mode (0) the
meter controls the setpoint output. In Manual Mode (1) the outputs are defined
by the registers SOR. When transferring from auto mode to manual mode, the
meter holds the last output value (until the register is changed by a write). Each
output may be independently changed to auto or manual. Select values to place
in manual mode by writing appropriate value to holding register 40036. The bit
position definitions are:
Examples:
1. Select manual mode for all outputs (PAX):
Value to write to holding register 40021: 0010h
2. Select manual mode for all outputs and AOR (PAXI, PAXCK):
Value to write to holding register 40036: 001Fh
(SOR) Setpoint Output Register [40038] (PAXI/PAXCK)
This register is used to view or change the states of the setpoint outputs.
Reading from this register will show the present state of all the setpoint outputs.
A “0” in the setpoint location means the output is inactive and a “1” means the
output is active.
In Automatic Mode (See MMR Description), the meter controls the setpoint
output state. In Manual Mode, writing to this register will change the output
state. The bit position definitions are:
Examples:
1. Turn all outputs on:
Value to write to holding register 40038: 000Fh.
2. Turn outputs 1, 3 on:
Value to write to holding register 40038: 0005h.
3. Turn all outputs off:
Value to write to holding register 40038: 0000h.
(AOR) Analog Output Register (Not PAXCK)
The Analog Output Register controls the analog output of the meter. The
manual mode must first be engaged by setting bit 4 of the CSR (PAX) or bit 0
of the MMR (PAXI). The range of values of this register is 0 to 4095, which
corresponds to 0 mA, 0 V and 20 mA, 10 V; respectively. If a value larger than
4095 is written to the AOR register, 4095 will be loaded. The table lists
correspondence of the output signal with the register value.
*Due to the absolute accuracy rating and
resolution of the output card, the actual
output signal may differ 0.15% FS from
the table values. The output signal
corresponds to the range selected (20 mA
or 10 V).
Writing to this register while the meter is in the manual mode causes the output
signal to update immediately. While in the automatic mode, this register may be
written to, but the output will not update until the meter is placed in manual mode.
Examples:
1. Set output to full scale:
Value to write to holding register 40020 (PAX) or 40037 (PAXI): 0FFFh (4095).
2. Set output to zero scale:
Value to write to holding register 40020 (PAX) or 40037 (PAXI): 0000h (0).
MODBUS SUPPORTED FUNCTION CODES
COIL FUNCTIONS
FC01: Read Coils
FC05: Force Single Coil, FC15: Force Multiple Coils.
1. Valid coil addresses are 1-49.
2. Block starting point can not exceed coil 49.
HOLD REGISTER FUNCTIONS
FC03: Read Holding Registers.
FC06: Preset Single Register, FC16: Preset Multiple Registers.
1. Valid register address are 40001 – 40039, 40041, 40042, 41001 – 41010.
2. Up to 16 registers can be requested at one time.
3. Block starting point can not exceed the register boundaries.
4. Holding registers are a mirror of Input registers (FC04).
5. Unused registers will return a value of HEX <8000>.
6. If a register is implemented, but does not exist for a particular unit
configuration (such as SP3, SP4) a value of HEX <0000> will be returned.
7. Registers 41001 – 41010 contain the slave ID. See FC17.
8. Broadcast write is supported for FC06 & FC16. Register writes using address
“0” will be recognized by the MODBUS card, regardless of address DIP
switch setting.
OTHER SUPPORTED FUNCTIONS
FC04:
Returns the same values as FC03, except the register number starts with “3”
(Ex: Pax Input Hi is 30001)
FC08 – Fetch Comm. Event Counter.
The MODBUS response breaks down as follows:
“:010804”<TOT HI><TOT LO><GOOD HI><GOOD LO>XX<CR><LF>
The “TOT HI” and “TOT LO” values are the total number of messages that
were received, that started with the card’s address. The “GOOD HI” and
“GOOD LO” are “good” messages (correct address, parity, and checksum). The
values are reset on power up and every time the FC08 function is requested.
FC17 - Report Slave ID.
The following is sent upon FC17 request:
Unit Address, 17 (FC code), RLC-PAX(I or ?) 00?0, 0100 (for code version
1.00), 16 (number of read supported registers), 16 (number of write
supported registers), 00 (number of registers available for GUID/Scratch pad
memory), checksum of the string.
The following is the HEX of a PAXI (with unit address of 247):
:<F7><11><14><52><4C><43><2D><50><41><58><49><30><30><3F>
<30><01><00><00><10><00><10><00><00><XX><CR><LF>
XX is the LRC Checksum
Register Value V (V)
Output Signal*
00.0000.000
1 0.00250.005
2047 5.00010.000
4094 9.997519.995
4095 10.00020.000
I(mA)
PAX MANUAL MODE DESCRIPTION
1 = manual mode
0 = automatic mode
bit 4: Manual Mode
bit 3: SP4 Output
bit 2: SP3 Output
bit 1: SP2 Output
bit 7: Always stays 0, even if 1 is sent.
1 = sensor fail
0 = sensor normal
bit 6: Sensor Status (PAXT only)
bit 5: Always stays 0, even if 1 is sent.bit 0: SP1 Output
0 = output off
1 = output on
⎫
⎬
⎭
bit 0: Analog Output
bit 1: SP4
bit 2: SP3
bit 3: SP2
bit 4: SP1
⎫
⎬
⎭
0 = Auto Mode
1 = Manual Mode
PAXI
bit 0: SP1
bit 1: SP2
bit 2: SP3
bit 3: SP4
⎫
⎬
⎭
0 = Output off
1 = Output on
bit 0: SP4
bit 1: SP3
bit 2: SP2
bit 3: SP1
⎫
⎬
⎭
0 = Auto Mode
1 = Manual Mode
PAXCK

K
9511-717-767-6511
HOLDING REGISTERS
HOLDING
REGISTER
SETTING
PAX 4ACCESS
40001: Input (HI) Read Only
40002: Input (LO) Read Only
40003: Total (HI) Read Only
40004: Total (LO) Read Only
40005: Min (HI) Read Only
40006: Min (LO) Read Only
40007: Max (HI) Read Only
40008: Max (LO) Read Only
40009: SP1 (HI) Read/Write
40010: SP1 (LO) Read/Write
40011: SP2 (HI) Read/Write
40012: SP2 (LO) Read/Write
40013: SP3 (HI) Read/Write
40014: SP3 (LO) Read/Write
40015: SP4 (HI) Read/Write
40016: SP4 (LO) Read/Write
40017: Polling1 * Read/Write
40018: Reset * Read/Write
40019: TRX Delay 3Read/Write
40020: AOR 2Read/Write
40021: CSR Read/Write
40022: Terminate1 Read/Write
HOLDING
REGISTER
SETTINGSETTINGSETTING
PAXI 5
40023: LDC (HI)
40024: LDC (LO)
40025: SP1 (HI)
40026: SP1 (LO)
40027: SP2 (HI)
40028: SP2 (LO)
40029: SP3 (HI)
40030: SP3 (LO)
40031: SP4 (HI)
40032: SP4 (LO)
40033: Polling1 *
40034: Polling2 *
40035: TRX Delay 3
40036: MMR
40037: AOR 2
40038: SOR
40039: Reset *
ACCESS
PAXCK/PAXTM 5
Read/WriteSP4 Off (HI)
Read/WriteSP4 Off (LO)
Read/WriteTimer Start (HI)
Read/WriteTimer Start (LO)
Read/WriteCounter Start (HI)
Read/WriteCounter Start (LO)
Read/WriteTimer Stop (HI)
Read/WriteTimer Stop (LO)
Read/WriteCounter Stop (HI)
Read/WriteCounter Stop (LO)
Read/WritePolling1 *
Read/WritePolling2 *
Read/Write
TRX Delay 3
Read/WriteMMR
Read/WriteRTC Day
Read/WriteSOR
Read/WriteReset *
40040:
40041: Terminate1 Read/WriteTerminate1
40042: Terminate2 Read/WriteTerminate2
* See Coil Table for register mapping and Coil Descriptions for functionality.
Notes:
1. Any registers marked with “——” are unused and will return a value of HEX
<8000>.
2. If a value larger than 4095 is written to the AOR register, 4095 will be
loaded.
3. TRX delay is the minimum time from the reception of the last character in
the MODBUS Query until the response is started. The minimum delay value
is equal to 2 character times (2 msec min.). The user can increase the delay
time by writing to the TRX Delay register. Any value written to the TRX
Delay register that is less than the value calculated at power up will be
ignored. The TRX Delay value is stored in E2PROM memory. On power-up,
the calculated value is compared to the value read back from the E2PROM.
The greater of the 2 values will be used as the TRX Delay value and will be
written to the TRX Delay register.
4. Numeric data is limited to value -19999 to 99999.
5. Numeric data is limited to the value listed for that parameter according to the
meter’s literature.
Read/WriteSP3 Off (LO)LDB (LO)40022:
Read/WriteSP3 Off (HI)LDB (HI)40021:
Read/WriteSP2 Off (LO)
Read/WriteSP2 Off (HI)
Read/WriteSP1 Off (LO)
Read/WriteSP1 Off (HI)
Read/WriteSP4 (LO)
Read/WriteSP4 (HI)
Read/WriteSP3 (LO)
Read/WriteSP3 (HI)
Read/WriteSP2 (LO)
Read/WriteSP2 (HI)
Read/WriteSP1 (LO)
Read/WriteSP1 (HI)
Read/WriteRTC Date (LO)
Read/WriteRTC Date (HI)
Read/WriteRTC Time (LO)
Read/WriteRTC Time (HI)
Read/WriteCounter (LO)
Read/WriteCounter (HI)
Read/WriteTimer (LO)
Read/WriteTimer (HI)
ACCESS
PAXCK/PAXTM 5
LDA (LO)40020:
LDA (HI)40019:
SFC (LO)40018:
SFC (HI)40017:
SFB (LO)40016:
SFB (HI)40015:
SFA (LO)40014:
SFA (HI)40013:
Max (LO)40012:
Max (HI)40011:
Min (LO)40010:
Min (HI)40009:
RTE (LO)40008:
RTE (HI)40007:
CTC (LO)40006:
CTC (HI)40005:
CTB (LO)40004:
CTB (HI)40003:
CTA (LO)40002:
CTA (HI)40001:
PAXI 5
SETTINGSETTINGSETTING
HOLDING
REGISTER
Values less than 65,535 will be in (LO word). Values greater than 65,535 will
continue into (HI word). Negative values are represented by two’s complement
of the combined (HI word) and (LO word).

K
952 www.redlion.net
MIRROR REGISTERCOIL NAME COIL NAME
COIL NUMBERCOIL ADDRESS
001 SP1 Output SP1 Output
COIL NAME
102 SP2 Output SP2 Output
MIRROR REGISTER
203 SP3 Output SP3 Output
40021 (bit 0)
304 SP4 Output SP4 Output
40038 (bit 0)
405 Reset Max Reset Max
PAX
506 Reset Min Reset Min
40021 (bit 1)
607 ——- Reset CNT A
40038 (bit 1)
708 ——- Reset CNT B
40021 (bit 2)
809 ——- Reset CNT C
40038 (bit 2)
910 Reset Total ——-
40021 (bit 3)
1011 Poll Input Poll CNT A
40038 (bit 3)
1112 Poll Total Poll CNT B
40018 (bit 2)
1213 Poll Max Poll MAX
40039 (bit 2)
1314 Poll Min Poll MIN
40018 (bit 3)
1415 Poll SP1 Poll SP1
40039 (bit 3)
1516 Poll SP2 Poll SP2
——-
1617 Poll SP3 Poll SP3
40039 (bit 7)
1718 Poll SP4 Poll SP4
——-
1819 Poll AOR Poll AOR
40039 (bit 6)
1920 Poll CSR Poll SOR
——-
SP1 Output
SP2 Output
MIRROR REGISTER
40039 (bit 5)
SP3 Output
SP4 Output
40038 (bit 0)
40018 (bit 4)
——-
——-
Reset Timer
——-
40038 (bit 1)
Reset Counter
——-
40017 (bit 0)
40038 (bit 2)
——-
Poll Timer40033 (bit 0)
40038 (bit 3)
Poll Counter
Poll SP2
40017 (bit 1)
——-
Poll SP1
Poll Timer Start
40033 (bit 1)
——-
Poll Counter Start
Poll Timer Stop
40017 (bit 2)
40039 (bit 7)
Poll Counter Stop
Poll Day
40033 (bit 2)
40039 (bit 6)
Poll SOR
——-
40017 (bit 3) 40033 (bit 3)
40017 (bit 4) 40033 (bit 4)
40017 (bit 5) 40033 (bit 5)
40017 (bit 6) 40033 (bit 6)
40017 (bit 7) 40033 (bit 7)
40017 (bit 8) 40033 (bit 8)
40017 (bit 9) 40033 (bit 9)
——-
40033 (bit 0)
40033 (bit 1)
40033 (bit 2)
40033 (bit 3)
40033 (bit 4)
40033 (bit 5)
40033 (bit 6)
40033 (bit 7)
40033 (bit 8)
40033 (bit 9)
PAXCK
4041
3031
2021
——-
——-
Term Total
Term LDB
Term CNT A
Poll CNT C
Term SP3 Off
Term Timer
Poll RTC Time
——-
——-
40022 (bit 0)
40041 (bit 10)
40041 (bit 0)
40033 (bit 10)
40041 (bit 10)
40041 (bit 0)
40033 (bit 10)
4142
3132
2122
PAXI
——-
——-
Term Max
Term LDC
Term CNT B
Poll RATE
Term SP4 Off
Term Count
Poll RTC Date
——-
——-
40022 (bit 1)
40041 (bit 11)
40041 (bit 1)
40033 (bit 11)
40041 (bit 11)
40041 (bit 1)
40033 (bit 11)
4243
3233
2223
——-
——-
Term Min
Term SP1
Term CNT C
Poll SFA
Term Time Start
Term RTC Time
Poll SP3
——-
——-
40022 (bit 2)
40041 (bit 12)
40041 (bit 2)
40033 (bit 12)
40041 (bit 12)
40041 (bit 2)
40033 (bit 12)
4344
3334
2324
——-
——-
Term SP1
Term SP2
Term Rate
Poll SFB
Term Count Start
Term RTC Date
Poll SP4
——-
——-
40022 (bit 3)
40041 (bit 13)
40041 (bit 3)
40033 (bit 13)
40041 (bit 13)
40041 (bit 3)
40033 (bit 13)
3940
2930
4849
3839
2829
4647
3637
2627
4748
3738
2728
4546
3536
2526
4445
3435
2425
——-
——-
Term CSR
——-
——-
Term SP4
——-
——-
Term AOR
——-
——-
Term SP3
——-
——-
Term SP2
Term SOR
Term SFC
Poll MMR
Term AOR
Term SFA
Poll LDB
Term MMR
Term SFB
Poll LDC
Term SP4
Term Max
Poll LDA
Term SP3
Term Min
Poll SFC
Term SP2 Off
Response Delay
Term SOR
Term SP1 Off
Poll MMR
Term MMR
Term SP3
Poll SP3 Off
Term Day
Term SP4
Poll SP4 Off
Term Count Stop
Term SP2
Poll SP2 Off
Term Time Stop
Term SP1
Poll SP1 Off
——-
40017 (bit 10)
——-
——-
40022 (bit 8)
——-
——-
40022 (bit 6)
——-
——-
40022 (bit 7)
——-
——-
40022 (bit 5)
——-
——-
40022 (bit 4)
40041 (bit 9)
40034 (bit 3)
40042 (bit 2)
40041 (bit 8)
40034 (bit 2)
40042 (bit 0)
40041 (bit 6)
40034 (bit 0)
40042 (bit 1)
40041 (bit 7)
40034 (bit 1)
40041 (bit 15)
40041 (bit 5)
40033 (bit 15)
40041 (bit 14)
40041 (bit 4)
40033 (bit 14)
40041 (bit 9)
40034 (bit 3)
40042 (bit 2)
40041 (bit 8)
40034 (bit 2)
40042 (bit 0)
40041 (bit 6)
40034 (bit 0)
40042 (bit 1)
40041 (bit 7)
40034 (bit 1)
40041 (bit 15)
40041 (bit 5)
40033 (bit 15)
40041 (bit 14)
40041 (bit 4)
40033 (bit 14)
COIL TABLE
——-
Response Delay
Term LDA
Response Delay

K
9531-717-767-6511
Coils 1-4: Output Coils
These coils are used to read or change the states of the Setpoint Outputs.
To change the state of the output(s), the output(s) must be in manual mode.
Refer to the CSR or MMR/SOR registers in the Manual Mode Description
section.
Coils 5-10: Reset Coils
These coils are used to perform the Reset command for the values listed.
Forcing the coil “on” causes the appropriate value in the unit to be reset.
The coil is cleared after the command is executed, therefore, the coil value
read will always be 0 (zero).
Coils 11-29: Polling Coils
The MODBUS card is continually requesting values from the PAX unit. The
polling bit coils determine what values are requested during each loop.
Setting the coils to “1” enables the card to poll that particular value. A “0”
value disables it. Turning polling coils off allows the user to request fewer
values and therefore decreases the internal loop time, which allows the
values that are polled to be updated more often.
If a MODBUS read is issued for any value, that value is automatically
updated to the latest value, regardless of whether the polling bit is on or
off. On power up, all values are updated regardless of Polling bit settings.
Polling coil values are saved in E2PROM memory. Factory settings is “on”
for all Polling coils.
**Update time is the typical time to update the internal memory provided no
MODBUS requests are incoming.
Coils 21-29 (PAX), Coils 31-49 (PAXI/PAXCK): Terminating
Coils
This set of coils determines what terminating character is sent to the PAX
meter when a write command is executed. If the flag is 0, a $ is used as the
terminating character and the value is not saved to E2PROM memory in
the PAX. If the flag is 1, an * is used as the terminating character and the
value is saved to E2PROM memory in the PAX.
Coil 30: Response Delay
When a write command is issued, the new value is written to the PAX. If
the coil is off, the MODBUS write response is not issued until the value is
read back from the PAX. For MODBUS reads, if a polling coil is off, the
response is not issued until the latest value is read back from the PAX. If
the coil is set “on” the MODBUS response is issued as soon the received
command is complete. The write coil is saved in E2PROM memory.
Factory setting is on.
COIL DESCRIPTIONS
TYPICAL UPDATE TIMES**
PAX PAXI/PAXCK
All values (10) - 1.15 sec All values (19) - 900 msec
5 values - 500 msec 10 values - 480 msec
1 value - 100 msec 5 values - 230 msec
1 value - 52 msec

K
954 www.redlion.net
DESCRIPTION
The PAX PROFIBUS-DP Communications Option Card provides a direct
connection for a PAX panel meter to a PROFIBUS-DP Network. This allows a
PROFIBUS Master device, such as a PLC, to control and monitor the operation
of the PAX meter. The meter functions as an intelligent PROFIBUS-DP Slave
device on the Network.
The PROFIBUS-DP Network connects through a 9-pin D-subminiature
female connector on the rear of the card. The card is installed in the PAX meter
using a slotted rear cover, allowing the PROFIBUS-DP Connector to extend
beyond the rear of the PAX case. Power for the card is provided internally from
the power supply of the PAX meter. The PROFIBUS-DP Network is isolated
from the control electronics on the card using high-speed optocouplers.
This fully featured communications card supports Automatic Baud Rate
Detection, with an operating range of 9.6 Kbaud up to 12 Mbaud. The Station
Address is set via rotary switches. The card’s address is read at power up.
MODEL PAXCDC - PROFIBUS-DP COMMUNICATIONS OPTION CARD
Data Exchange with the Master device occurs through cyclic I/O data
transmission. The size of the I/O data block is determined by the selection of
pre-configured Modules for Analog or Digital PAX meter type. All data values
are in 32-bit integer format, Motorola byte ordering. The PROFIBUS-DP
protocol per EN 50170 is implemented using the Siemens SPC3 ASIC. Three
on-board Diagnostic LEDs indicate the status of Data Exchange (DATA), the
SPC3 Watchdog (WD) and DP State Machine (DP).
PNO Conformance and GSD File
The PAX PROFIBUS-DP Card is PNO certified, having passed the
conformance test for PROFIBUS-DP Slave devices, Certificate No. Z01170.
The PNO Identifier for this PROFIBUS device is 0x09D0. The functional
characteristics are described in GSD file REDL09D0.GSD. The GSD file and
PAX bitmap can be downloaded from the Red Lion Controls website.
SPECIFICATIONS
1. FIELDBUS TYPE: PROFIBUS-DP per standard EN 50170, implemented
with Siemens SPC3 ASIC
2. BUS INTERFACE: Isolated RS485 through 9-Pin D-Sub connector
3. NETWORK ISOLATION: 500 Vrms for 1 minute (50 V working) between
PROFIBUS-DP network and PAX Sensor & User Input commons. Not
isolated from other PAX option card commons.
4. POWER: Card powered internally by the PAX meter
5. OUTPUT POWER: +5 VDC @ 90 mA max. available on the D-Sub
connector pins 5 (GND) and 6 (+5 V)
6. BAUD RATES: 9.6 Kbaud to 12 Mbaud, Auto Baud Rate Detection
7. STATION ADDRESS: 0 to 125, set by rotary switches
8. SUPPORTED FUNCTIONS:
FREEZE Mode: Supported
SYNC Mode: Supported
FAIL SAFE Mode: Not Supported
EXTERNAL DIAGNOSTIC DATA: Not Supported
9. INSTALLATION REQUIREMENTS:
Installed Depth: 4.88" (124 mm) from the rear of the PAX bezel
Additional Height: 0.35" (9 mm) above the PAX case surface
ORDERING INFORMATION
MODEL NO. DESCRIPTION PART NUMBER
PAXCDC50PAXCDC
zCONNECTS PAX METER TO PROFIBUS-DP NETWORK
zSTANDARD 9-PIN D-SUB CONNECTOR INTERFACE
zCYCLIC I/O DATA TRANSMISSION, UP TO 84 BYTES IN/OUT
zOPERATING RANGE FROM 9.6 KBAUD TO 12 MBAUD WITH
AUTOMATIC BAUD RATE DETECTION
zSTATION ADDRESS SET THROUGH ROTARY SWITCHES
zCONFIGURATION VIA SELECTION OF PRE-CONFIGURED
MODULES FOR ANALOG OR DIGITAL PAX METER TYPE
zFREEZE MODE AND SYNC MODE SUPPORTED
zDIAGNOSTIC LEDs INDICATE CARD STATUS
zPNO CERTIFIED, CONFORMANCE TESTED SLAVE DEVICE
PAX PROFIBUS-DP Communications Card

K
9551-717-767-6511
INSTALLING AN OPTION CARD
Caution: The option and main circuit cards contain static
sensitive components. Before handling the cards, discharge static
charges from your body by touching a grounded bare metal
object. Ideally, handle the cards at a static controlled clean
workstation. Also, only handle the cards by the edges. Dirt, oil or
other contaminants that may contact the cards can adversely
affect circuit operation.
Warning: Exposed line voltage exists on the circuit boards.
Remove all power to the meter AND load circuits before
accessing the unit.
1. Remove the main assembly from the rear of the case. Squeeze the finger
holds on the rear cover, or use a small screwdriver to depress the side
latches to release it from the case. It is not necessary to separate the rear
cover from the main circuit card.
2. Locate the option card connector for the serial communication card.
Hold the unit by the rear cover, not the display board, when installing an
option card.
3. Install the option card by aligning the option card with the slot in the rear
cover. Be sure the connector is fully engaged and the tab on the option
card rests in the alignment slot on the display board.
4. Slide the assembly back into the case. Be sure the rear cover latches fully
into the case.
TOP VIEW
PRINCIPLE OF OPERATION
The PAX PROFIBUS-DP Card provides the PROFIBUS Network with
access to an Input Data Block (data written to the PROFIBUS Network from the
PAX) and an Output Data Block (data read from the PROFIBUS Network by
the PAX). Using an internal high speed protocol, the card scans each PAX
register in turn, continuously reading Input Data and only writing Output Data
on demand. The PAX registers are mapped into each Input and Output Data
Block, allowing the PROFIBUS Network read/write access to all the registers
in the PAX. The structure of these Data Blocks is described in more detail in
section Data Block Structure.
The Input Data and Output Data Blocks are updated at the end of each scan
of the host PAX Meter. In order to increase the rate that new data is made
available to the PROFIBUS Network, a scheme is employed that reduces the
number of registers polled by the card in each scan to only those that are
required in the application. This Polled Read Mask maps each bit to a PAX
register index which, when set, will force that register to be read from the PAX
Meter. This Polled Read Mask is defined as User Parameter Data and is
described in more detail in section Parameterization.
Due to the cyclic nature of data exchange in the PROFIBUS network
changing Output Data in a slave device, a scheme is employed that indicates
which registers need to be written to the PAX Meter. This Demand Write Mask
maps each bit to a register index which when set, will perform a “once only”
write from the Output Data Block to the PAX Meter. Clearing and re-setting the
bit in the Demand Write Mask will cause the value to be written again. The
Demand Write Mask is part of the Data Block structure and is described in detail
in section Demand Write and Store Request Masks.
STATION ADDRESS
The station address is set using three rotary switches allowing the ID to be set
in standard decimal notation (e.g. address = 123 - SWC = 1, SWB = 2, SWA =
3). Valid addresses range from 0 to 125. If an address greater than 125 is set, the
card will default to a station address of 125.
Note: The card will not default to 125 if set for 999, this number is a special
test mode.
DIAGNOSTIC LEDs
Three LEDs indicate the status of the SPC3 DP Control State Machine (DP),
the Watchdog State Machine (WD) and the PROFIBUS-DP Data Exchange
State (DATA) as shown in Table 1. The LEDs are viewable through the vents on
the top of the PAX case.
Table 1 - LED Indication of PROFIBUS-DP Card Status
LED STATE
CARD STATUS
DP (Red) WD (Green) DATA (Red)
FLASHING FLASHING OFF Bus Not Connected
OFF FLASHING OFF Baud Rate Search
OFF ON OFF Baud Control
FLASHING ON OFF Waiting for Parameterization
ON ON OFF Waiting for Configuration
OFF OFF ON Data Exchange

K
956 www.redlion.net
-1 - 4
DATA BLOCK
BYTES
Demand Write Mask (Output) / Service Status (Input)
PAXCK DIGITAL
CLOCK / TIMER
(6-Digit)
PAXI DIGITAL
COUNT / RATE
(6-Digit)
PAXDP ANALOG
INPUT METER
(5-Digit)
PAX ANALOG
INPUT METER
(5-Digit)
5
1
3
-
Setpoint 2Max. RateMax InputSetpoint 2
CounterCount BInput B (relative)
Total *
RTC DateRateTot al
Min. Input *
Store Mask (Output) / Unused (Input)
18
17
14
10
15
12
8
16
13
9
11
7
6
2
4
0
81 - 84
77 - 80
65 - 68
49 -52
69 - 72
41 - 44
73 - 76
61 - 64
45 - 48
53 - 56
37 - 40
33 - 36
17 - 20
25 - 28
9 - 12
SOR **SOR **SOR **
----
RTC Day
AOR **AOR **
----
Timer StopSetpoint 3Setpoint 3----
Setpoint Off 3Count Load B
***
----
Counter StopSetpoint 4Setpoint 4----
Timer StartSetpoint 1Setpoint 1----
Setpoint Off 1Scale Factor CInput A (offset)
AOR **
MMR **MMR **MMR **
----
Counter StartSetpoint 2Setpoint 2----
Setpoint Off 2Count Load AInput B (offset)
CSR **
Setpoint Off 4Count Load C
***
----
Setpoint 4Scale Factor BInput B (absolute)Setpoint 4
Setpoint 3Scale Factor AInput A (absolute)Setpoint 3
RTC TimeCount CCalculation
Max. Input *
Setpoint 1Min. RateMin InputSetpoint 1
TimerCount AInput A (relative)
Input *
21 - 24
5 - 8
29 - 32
13 - 16
57 - 60
Table 3 - Data Block Structure
REGISTER INDEX
(Mask Bit)
PARAMETERIZATION
The Polled Read Mask defines which PAX registers will be polled by the card
and therefore updated in the Input Data Block. The Polled Read Mask is a 32-
bit integer with each bit mapped to a PAX register index. The Polled Read Mask
is configured in the card by the Master sending a Parameterization telegram
with 4 bytes of User Parameter Data representing the Polled Read Mask, in
Motorola byte ordering.
Table 2 shows the User Parameter bytes representing the Polled Read Mask
and gives the default value and a typical example. The default Polled Read
Mask indicates PAX register index 0 will be updated in the Input Block. The
example Polled Read Mask indicates that PAX registers 0 and 8 will be updated
in the Input Block.
Table 2 - User Parameter Data
CONFIGURATION
The 2 basic PAX meter types are the Analog PAX (5-digit units) and the
Digital PAX (6-digit units). They differ in the number of registers available and
therefore the size of the Data Block required to map all the registers completely.
Each PAX register is represented as a 32-bit Integer requiring 2, 16-bit words or
4 bytes. Configuration of the Data Block is by the selection of pre-configured
modules, identified in the GSD file as “PAX Digital (6-digit)” and “PAX Analog
(5-digit)”, that correspond to the host PAX Meter type.
DATA EXCHANGE
Demand Write and Store Request Masks
The Demand Write Mask defines how data is written to the PAX. The
Demand Write Mask is a 32-bit integer with each bit mapped to a PAX register
index. Setting a bit in the Demand Write Mask of the Output Data Block will
force the corresponding register to be written “once only” to the PAX. Clearing
and re-setting the bit will cause the value to be written again. The Demand Write
Mask is part of the Data Block structure.
The Write Service Status register in the Input Data Block reports when the
register has been written to the PAX by setting the corresponding bit. By
monitoring this register a PLC program can detect when the Output Data has
been serviced. The bit will be cleared in the Service Status register when the
corresponding bit is cleared in the Demand Write Mask.
The Store Mask defines how the written value is to be stored in the PAX. The
PAX meters have some values stored in EEPROM so they may power up in the
last saved state. For values that change often it is possible to exceed the life of
an EEPROM with repeated writes to the same address location - this method
inhibits writes to EEPROM. The Store Mask is a 32-bit integer with each bit
mapped to a PAX register index. Setting a bit will inhibit the corresponding
register from being saved to EEPROM.
Data Block Structure
Table 3 shows the Data Block Structure, consisting of the Write and Store
Masks and the individual PAX Data Registers. Each Data Register value is a 32-
bit Integer, with Motorola byte ordering. For the Analog PAX meters, the Data
Block size is 48 bytes Input, 48 bytes Output. For the PAXDP and the Digital
PAX meters, the Data Block size is 84 bytes Input, 84 bytes Output.
BYTE 01234
DESCRIPTION -Polled Read Mask
DEFAULT 0x00 0x00 0x00 0x00 0x01
EXAMPLE 0x00 0x00 0x00 0x01 0x01
* Indicates Read-Only parameters. All other parameters are Read/Write.
** Indicates PAX Manual Mode Registers. See next section for description.
*** Indicates bit value must not be set in the Parameterization polled read masks.

K
9571-717-767-6511
CSR - Control Status Register (PAX Analog Only)
The Control Status Register is used to directly control the meter’s outputs
(setpoints and analog output), or view the state of the setpoint outputs and the
status of the temperature sensor (PAXT only). The CSR register is bit mapped,
with the bit positions of the least-significant byte assigned to specific control
functions. The control functions are invoked by writing to the appropriate bit
position. The bit position definitions are:
Setting bit 4 of the CSR selects Manual Mode. In this mode, the setpoint
outputs are defined by the values written to bits b0, b1, b2, b3; and the analog
output is defined by the value written to the Analog Output Register (AOR).
Internal control of these outputs is then overridden.
In Automatic Mode, the setpoint outputs can only be Reset off. The contents
of the CSR may be read to interrogate the state of the setpoint outputs and to
check the status of the temperature sensor (PAXT only).
MMR - Auto/Manual Mode Register (PAXDP/PAXI/PAXCK)
This register sets the controlling mode for each output in the PAX meters.
Each output may be independently changed to Auto or Manual mode. The MMR
register is bit mapped, with the bit positions of the least-significant byte
assigned to specific outputs. Auto or Manual mode is selected by writing to the
appropriate bit position. The bit position definitions are:
0 = Auto Mode, 1 = Manual Mode
In Auto Mode (0) the meter controls the setpoint output state and the Analog
Output (PAXDP/PAXI only). In Manual Mode (1) the setpoint outputs are
defined by the value in the Setpoint Output Register (SOR); and the Analog
Output is defined by the value written to the Analog Output Register (AOR).
When transferring from Auto Mode to Manual Mode, the meter holds the last
output value (until the register is changed by a write).
SOR - Setpoint Output Register (PAXDP/PAXI/PAXCK)
The Setpoint Output Register is used to view or change the states of the
setpoint outputs in the PAX meters. Reading this register will show the present
state of all the setpoint outputs. A “0” means the output is inactive and a “1”
means the output is active.
In Auto Mode (see MMR description), the meter controls the setpoint output
state. In Manual Mode, the four least-significant bits of the SOR are assigned to
specific outputs. Writing to the appropriate bit position defines the state of the
setpoint output. The bit position definitions are:
(AOR) Analog Output Register (Not applicable to PAXCK)
The Analog Output Register value defines the signal level of the meter’s
analog output. The range of values for this register is 0 to 4095 (0FFFh), which
corresponds to the analog output signal ranges shown in Table 4.
*Due to the absolute accuracy
rating and resolution of the
output card, the actual output
signal may differ 0.15% FS from
the table values. The output
signal corresponds to the range
selected (0-20 mA or 0-10 V).
In Automatic mode, the meter controls the analog output signal level.
Reading the AOR will show the present value of the analog output signal. While
in Automatic mode, this register may be written to, but it has no effect until the
analog output is placed in the Manual mode.
In Manual mode, writing to the AOR causes the analog output signal level to
update per the value written. Manual mode is engaged by setting bit 4 of the
CSR (PAX Analog meter) or bit 0 of the MMR (PAXDP/PAXI). If a value larger
than 4095 is written to the AOR, 4095 will be loaded.
INSTALLATION AND CONNECTION
Installation Clearance Required - In Inches (mm)
PROFIBUS-DP Network Connection
PROFIBUS plug connectors such as Siemens 6ES7 972-0BA10-0XA0 are
recommended. When wiring the connector, be sure to observe the proper
direction for data flows, indicated by the arrows on the connector. When the
PAX meter is the last device on the network, set the terminating resistor switch
on the connector to the “ON” position.
PAX MANUAL MODE REGISTERS
bit 0: Analog Output bit 0: Setpoint 4 Output
bit 1: Setpoint 4 Output bit 1: Setpoint 3 Output
bit 2: Setpoint 3 Output bit 2: Setpoint 2 Output
bit 3: Setpoint 2 Output bit 3: Setpoint 1 Output
bit 4: Setpoint 1 Output
bit 0: Setpoint 4 Output Status
bit 1: Setpoint 3 Output Status 0 = Output Off
bit 2: Setpoint 2 Output Status 1 = Output On
bit 3: Setpoint 1 Output Status
Table 4 - Analog Output Signal Ranges
1 = manual mode
0 = automatic mode
bit 4: Auto/Manual Mode
bit 3: Setpoint 4 Output
bit 2: Setpoint 3 Output
bit 1: Setpoint 2 Output
bit 7: Unused (always stays 0)
1 = sensor fail
0 = sensor normal
bit 6: Sensor Status (PAXT only)
bit 5: Unused (always stays 0)bit 0: Setpoint 1 Output ⎫
⎬
⎭
0 = output off
1 = output on
PAXDP/PAXI PAXCK
⎫
⎬
⎭
4-20 mA
0-20 mA
20.000 20.000 10.000
19.996 9.997519.995
12.000 5.00010.000
0.005 4.004 0.0025
4.000 0.0000.000
0-10 V
Output Signal*
4095
4094
2047
0
Register
Value
1

K
958 www.redlion.net
INSTALLING AN OPTION CARD
Caution: The option and main circuit cards contain static
sensitive components. Before handling the cards, discharge
static charges from your body by touching a grounded bare metal
object. Ideally, handle the cards at a static controlled clean
workstation. Also, only handle the cards by the edges. Dirt, oil or
other contaminants that may contact the cards can adversely
affect circuit operation.
Warning: Exposed line voltage exists on the circuit boards.
Remove all power to the meter AND load circuits before
accessing the unit.
1. Remove the main assembly from the rear of the case. Squeeze the finger
holds on the rear cover, or use a small screwdriver to depress the side
latches to release it from the case. It is not necessary to separate the rear
cover from the main circuit card.
2. Locate the option card connector for the type of option card to be
installed. Hold the unit by the rear connector, not the display board, when
installing an option card.
3. Install the option card by aligning the option card connector with the slot
in the rear cover. The cards are keyed by position with different main
board connector locations. Be sure the connector is fully engaged and the
tab on the option card rests in the alignment slot on the display board.
4. Slide the assembly back into the case. Be sure the rear cover latches fully
into the case.
5. Apply the option card label to the bottom side of the meter. Do not cover
the vents on the top surface of the meter. The surface of the case must
be clean for the label to adhere properly. Apply the label to the area
designated by the large case label.
DESCRIPTION
This bulletin serves as a guide for the installation, configuration and
operation of PAX Setpoint cards. The setpoint cards are available as dual relay,
quad relay, quad sourcing transistor, or quad sinking transistor outputs. Only
one setpoint card can be installed at a time.
The PAX meter can be fitted with up to three option cards. The slot bays of
the option cards are dedicated to a particular card function. The option card
functions are: serial communications, analog output and setpoint output. Only
one card from each function category can be installed.
MODEL PAXCDS -SETPOINT OUTPUT PLUG-IN OPTION CARDS
PAX REAR TERMINAL CONNECTIONS
TOP VIEW

K
9591-717-767-6511
Enter the setpoint (alarm output) to be programmed. The in
the following parameters will reflect the chosen setpoint number. After
the chosen setpoint is completely programmed, the display will return to
. Repeat step for each setpoint to be programmed. The
chosen at will return to . The number of setpoints available
is setpoint output card dependent.
SETPOINT SELECT
Indicates Program Mode Alternating Display.
Factory Settings are shown.
ª
«
SP-4
SP-2
SP-3
SP-1NO
SPECIFICATIONS
Setpoint Output Cards: Four types of field installable cards
Response Time: 200 msec. max. to within 99% of final readout value
(digital filter and internal zero correction disabled)700 msec. max.
(digital filter disabled, internal zero correction enabled)
PAXH only: 1 sec. max. to within 99% of final readout value (digital
filter disabled)
PAXT only: 200 msec. typ.; 700 msec max. (digital filter disabled)
PAXH Isolation For All Four Cards:
Isolation To Sensor Common: 1400 Vrms for 1 min.
Working Voltage: 125 V
Isolation To User Input Common: 500 Vrms for 1 min.
Working Voltage: 50 V
Dual Relay Card: PAXCDS10
Type: Two FORM-C relays
Isolation To Sensor & User Input Commons: 2000 Vrms for 1 min.
Working Voltage: 250 V
Contact Rating:
One Relay Energized: 5 amps @ 120/240 VAC or 28 VDC (resistive
load), 1/8 HP @120 VAC, inductive load
Total Current With Both Relays Energized not to exceed 5 amps
Life expectancy: 100 K cycles min. at full load rating. External RC
snubber extends relay life for operation with inductive loads
Quad Relay Card: PAXCDS20
Type: Four FORM-A relays
Isolation To Sensor & User Input Commons: 2300 Vrms for 1 min.
Working Voltage: 250 V
Contact Rating:
One Relay Energized: 3 amps @ 250 VAC or 30 VDC (resistive load),
1/10 HP @120 VAC, inductive load
Total Current With All Four Relays Energized not to exceed 4 amps
Life Expectancy: 100 K cycles min. at full load rating. External RC
snubber extends relay life for operation with inductive loads
Quad Sinking Open Collector: PAXCDS30
Type: Four isolated sinking NPN transistors.
Isolation To Sensor & User Input Commons: 500 Vrms for 1 min.
Working Voltage: 50 V. Not Isolated from all other commons.
Rating: 100 mA max @ VSAT = 0.7 V max. VMAX = 30 V
Quad Sourcing Open Collector: PAXCDS40
Type: Four isolated sourcing PNP transistors.
Isolation To Sensor & User Input Commons: 500 Vrms for 1 min.
Working Voltage: 50 V. Not Isolated from all other commons.
Rating: Internal supply: 24 VDC ± 10% , 30 mA max. total all four
External supply: 30 VDC max., 100 mA max each output
Quad Sourcing Open Collector Output Card Supply Select
For Quad Sourcing Plug-in Card (PAXCDS40), set the jumper for internal or
external supply operation before applying power.
Sourcing Output Logic Card
(Internal Supply)
Sourcing Output Logic Card
(External Supply)
MODULE 6 - Setpoint (Alarm) Parameters ()
PARAMETER MENU
Parameter ª
«
ORDERING INFORMATION
MODEL DESCRIPTION PART NUMBER
PAXCDS
Dual Relay Output Card PAXCDS10
Quad Relay Output Card PAXCDS20
Quad Sinking Open Collector Output Card PAXCDS30
PAXCDS40Quad Sourcing Open Collector Output Card
Selection/Value
Sinking Output Logic Card

K
960 www.redlion.net
Setpoint Alarm Figures
With reverse output logic , the below alarm states are opposite.
Absolute Low Acting (Unbalanced Hys) = AU-Lo
Deviation High Acting (SP < 0) = dE-HI
Absolute Low Acting (Balanced Hys) = Ab-Lo Deviation High Acting (SP > 0) = dE-HI
Deviation Low Acting (SP < 0)= dE-Lo
Absolute High Acting (Unbalanced Hys) = AU-HI
This is also for Totalizer alarms: , Deviation Low Acting (SP > 0) = dE-Lo
Band Outside Acting = bANd
Absolute High Acting (Balanced Hys) = Ab-HI
* Deviation and band action setpoints are relative to the value of setpoint 1.
It is not possible to configure setpoint 1 as deviation or band actions. It is
possible to use setpoint 1 for an absolute action, while its value is being used
for deviation or band.
** The lower Totalizer action allows setpoints to function off of the
lower 5 digits of the Totalizer. The upper Totalizer action allows
setpoints to function off of the upper 4 digits of the Totalizer. To obtain
absolute low alarms for the Totalizer, program the or output
logic as reverse.
Enter the action for the selected setpoint (alarm output). See
Setpoint Alarm Figures for a visual detail of each action.
SETPOINT ACTION
ª
«
totHItotLobANddE-LOdE-HI
AU-LOAU-HIAb-LO
Ab-HI
OFF
Enter desired setpoint alarm value. These setpoint values can
also be entered in the Display Mode during Program Lock-
out when the setpoint is programmed as in Parameter
Module 3. When a setpoint is programmed as deviation or
band acting, the associated output tracks as it is changed.
The value entered is the offset, or difference from .
Enter desired hysteresis value. See Setpoint Alarm Figures
for visual explanation of how setpoint alarm actions (balance
and unbalance) are affected by the hysteresis. When the
setpoint is a control output, usually balance hysteresis is
used. For alarm applications, usually unbalanced hysteresis
is used. For unbalanced hysteresis modes, the hysteresis
functions on the low side for high acting setpoints and
functions on the high side for low acting setpoints.
Note: Hysteresis eliminates output chatter at the switch
point, while time delay can be used to prevent false
triggering during process transient events.
ª
«
ª
«
HYSTERESIS VALUE
-19999 to 99999
1 to 65000
SETPOINT VALUE
=
Absolute high, with balanced hysteresis
Absolute low, with balanced hysteresis
Absolute high, with unbalanced hysteresis
Absolute low, with unbalanced hysteresis
Deviation low, with unbalanced hysteresis *
=
Outside band, with unbalanced hysteresis *
Upper Totalizer absolute high, unbalance hysteresis**
=
=
=
=
=
=
=
=
Setpoint always off, (returns to SPSEL NO)
Deviation high, with unbalanced hysteresis *
Lower Totalizer absolute high, unbalance hysteresis**

K
9611-717-767-6511
The mode disables display setpoint annunciators. The
mode displays the corresponding setpoint annunciators
of “on” alarm outputs. The mode displays the
corresponding setpoint annunciators of “off” alarms
outputs. The mode flashes the corresponding
setpoint annunciators of “on” alarm outputs.
Enter the probe burn-out action. In the event of a
temperature probe failure, the alarm output can be
programmed to go on or off.
ª
«
ª
«
SETPOINT ANNUNCIATORS
PROBE BURN-OUT ACTION (PAXT ONLY)
norOFF FLASHrEv
OFFON
Enter the time value in seconds that the alarm is delayed
from turning on after the trigger point is reached. A value of
0.0 allows the meter to update the alarm status per the
response time listed in the Specifications. When the output
logic is , this becomes off time delay. Any time
accumulated at power-off resets during power-up.
Enter the time value in seconds that the alarm is delayed
from turning off after the trigger point is reached. A value of
0.0 allows the meter to update the alarm status per the
response time listed in the Specifications. When the output
logic is , this becomes on time delay. Any time
accumulated at power-off resets during power-up.
Enter the output logic of the alarm output. The logic
leaves the output operation as normal. The logic
reverses the output logic. In , the alarm states in the
Setpoint Alarm Figures are reversed.
Enter the reset action of the alarm output.
= Automatic action; This action allows the alarm
output to automatically reset off at the trigger points per the
Setpoint Action shown in Setpoint Alarm Figures. The “on”
alarm may be manually reset (off) immediately by a front
panel function key or user input.The alarm remains reset off
until the trigger point is crossed again.
= Latch with immediate reset action; This action
latches the alarm output on at the trigger point per the
Setpoint Action shown in Setpoint Alarm Figures. Latch
means that the alarm output can only be turned off by front
panel function key or user input manual reset, serial reset
command or meter power cycle. When the user input or
function key is activated (momentary or maintained), the
corresponding “on” alarm output is reset immediately and
remains off until the trigger point is crossed again.
(Previously latched alarms will be off if power up Display
Value is lower than setpoint value.)
= Latch with delay reset action; This action latches
the alarm output on at the trigger point per the Setpoint
Action shown in Setpoint Alarm Figures. Latch means that
the alarm output can only be turned off by front panel
function key or user input manual reset, serial reset
command or meter power cycle. When the user input or
function key is activated (momentary or maintained), the
meter delays the event until the corresponding “on” alarm
output crosses the trigger off point. (Previously latched
alarms are off if power up Display Value is lower than
setpoint value. During a power cycle, the meter erases a
previous Latch 2 reset if it is not activated at power up.)
When , the alarm is disabled (after a power up) until the
trigger point is crossed. Once the alarm is on, the alarm
operates normally per the Setpoint Action and Reset Mode.
ª
«
ª
«
OFF TIME DELAY
ON TIME DELAY
0.0 to 3275.0 Sec
ª
«
OUTPUT LOGIC
nor rEv
ª
«
RESET ACTION
LAtC2
LAtC1Auto
Alternate Setpoints
An Alternate list of setpoint values can be stored and recalled as needed. The
Alternate list allows an additional set of setpoint values. (The setpoint numbers
nor rear terminal numbers will change in the Alternate list.) The Alternate list
can only be activated through a function key or user input programmed for
in Module 2. When the Alternate list is selected, the Main list is stored and
becomes inactive. When changing between Main and Alternate, the alarm state
of Auto Reset Action alarms will always follow their new value. Latched “on”
alarms will always stay latched during the transition and can only be reset with
a user input or function key. Only during the function key or user input
transition does the display indicate which list is being used.
Setpoint Alarm Reset Actions
0.0 to 3275.0 Sec
ª
«
STANDBY OPERATION
YESno

K
962 www.redlion.net
ORDERING INFORMATION
INSTALLING AN OPTION CARD
Caution: The option and main circuit cards contain static
sensitive components. Before handling the cards, discharge
static charges from your body by touching a grounded bare
metal object. Ideally, handle the cards at a static controlled
clean workstation. Also, only handle the cards by the edges. Dirt,
oil or other contaminants that may contact the cards can
adversely affect circuit operation.
Warning: Exposed line voltage exists on the circuit boards.
Remove all power to the meter AND load circuits before
accessing the unit.
1. Remove the main assembly from the rear of the case. Squeeze the finger
holds on the rear cover, or use a small screwdriver to depress the side
latches to release it from the case. It is not necessary to separate the rear
cover from the main circuit card.
2. Locate the option card connector for the type of option card to be
installed. Hold the unit by the rear connector, not the display board, when
installing an option card.
3. Install the option card by aligning the option card connector with the slot
bay in the rear cover. The cards are keyed by position with different main
board connector locations. Be sure the connector is fully engaged and the
tab on the option card rests in the alignment slot on the display board.
4. Slide the assembly back into the case. Be sure the rear cover latches fully
into the case.
5. Apply the option card label to the bottom side of the meter. Do not cover
the vents on the top surface of the meter. The surface of the case must
be clean for the label to adhere properly. Apply the label to the area
designated by the large case label.
DESCRIPTION
This bulletin serves as a guide for the installation, configuration and
operation of the PAX®Analog Output card. The analog output can be
configured for 0 to 20 mA, 4 to 20 mA or 0-10 VDC. Only one range can be
used at a time.
The PAX®meter can be fitted with up to three optional plug-in cards. The
slot bays of the plug-in cards are dedicated to a particular card function. The
plug-in card functions are: serial communications, analog output and setpoint
output. Only one card from each function category can be installed.
MODEL PAXCDL -ANALOG OUTPUT PLUG-IN OPTION CARD
SPECIFICATIONS
Analog Output Card
Types: 0 to 20 mA, 4 to 20 mA and 0 to 10 VDC
Isolation To Sensor & User Input Commons: 500 Vrms for 1 min.
Working Voltage: 50 V. Not isolated from all other commons.
PAXH Only:
Isolation To Sensor Common: 1400 Vrms for 1 min.
Working Voltage: 125 V
Isolation To User Input Common: 500 Vrms for 1 min.
Working Voltage: 50 V
Accuracy: 0.17% of FS (18 to 28°C); 0.4% of FS (0 to 50°C)
Resolution: 1/3500
Compliance:
10 VDC: 10 KΩload min.
20 mA: 500 Ωload max. (self-powered)
Update Time: 200 msec. max. to within 99% of final readout value (digital
filter and internal zero correction disabled)
700 msec. max. (digital filter disabled, internal zero correction enabled)
PAXH only: 1 sec. max. to within 99% of final readout value (digital filter
disabled)
MODEL NO. DESCRIPTION PART NUMBER
PAXCDL Analog Output Card PAXCDL10
TOP VIEW

K
9631-717-767-6511
Enter the analog output type. For 0-20 mA or 4-20 mA
use terminals 18 and 19. For 0-10 V use terminals 16 and
17. Only one range can be used at a time.
ª
«
ª
«
ANALOG TYPE
ANALOG ASSIGNMENT
SELECTION
0 to 10 V
4 to 20 mA
0 to 20 mA
RANGE
InP totLOHI
Enter the Display Value that corresponds to 0 mA (0-20
mA) , 4 mA (4-20 mA) or 0 VDC (0-10 VDC).
ª
«
ANALOG LOW SCALE VALUE
ª
«
ª
«
ª
«
ANALOG HIGH SCALE VALUE
ANALOG UPDATE TIME
PROBE BURN-OUT ACTION (PAXT ONLY)
-19999 to 99999
-19999 to 99999
0.0 to 10.0
LO HI
MODULE 8 - Analog Output Parameters (
)
PARAMETER MENU
Indicates Program Mode Alternating Display.
Factory Settings are shown.
ª
«
Parameter
Selection/Value
Enter the source for the analog output to retransmit:
InP = Display Input Value
HI = Maximum Display Input Value
LO = Minimum Display Input Value
tot = Totalize Display Value
Enter the Display Value that corresponds to 20 mA (0-20
mA) , 20 mA (4-20 mA) or 10 VDC (0-10 VDC).
Enter the analog output update rate in seconds. A value
of 0.0 allows the meter to update the analog output at a
rate of 20/sec.
Enter the probe burn-out action. In the event of a
temperature probe failure, the analog output can be
programmed for low or high scale.

K
964 www.redlion.net
Most electronic equipment designed for use in industrial environments has
a high degree of noise immunity and protection against damage. But even the
best can experience difficulties in operation if certain minimal considerations
are not adhered to when installing the equipment. When relay contacts are
used to switch inductive loads, such as auxiliary relays or solenoids, extremely
large voltage spikes can be generated when the relay contact opens, these
voltage spikes can cause pitting of the relay’s contacts, thereby reducing its
usable life.
The internal functioning components of an electronic instrument operate on
a low DC voltage, generally 5 V, and respond to signals as low as 1 V or less.
In contrast, stray voltage spikes in excess of 100 V and sometimes thousands
of volts can be detected in the industrial environment. These voltage spikes
can be coupled from power lines that are powering equipment that contains
S.C.R. circuitry, or in other ways causes rapid load changes on the AC line.
These spikes can also be coupled from lines that are actuating AC or DC
solenoids or actuators. In other words, any wiring in an industrial application
should be considered a potential noise source.
How can these noise spikes get into the instrument? There are three major
ways that noise spikes can enter the instrument.
1. Noise can enter directly, via the AC power input. It is recommended that
electronic instruments be connected to a relatively clean source of power. If
this cannot be accomplished, there are means of suppressing noise or
isolating the instrument from the noise. These consist of everything from
simple inductive load suppressors (M.O.V.’s) to constant voltage isolation
transformers, depending on the severity of power line disturbance.
2. Noise can enter via the input leads. Here, there are two modes (See Fig. 1)
by which the noise can enter. Normal mode, which means the noise enters
on the input lead, with respect to the instrument common; and common
mode, which means the noise enters on both the input and the instrument
common with respect to earth ground (power line neutral). It is
recommended that sensor input and control input wiring not be run in the
same conduit or raceways with power lines or current carrying control lines.
It is also recommended that these lines be kept away from inductive loads
such as motors, solenoids, relays and contactors. For best results, it is
recommended that two-conductor shielded cable be used to connect these
inputs. The shield should be connected to the input common at the
instrument only. In addition, the input common should only be connected to
machine ground (earth) at one point, preferably a direct connection to the
input common terminal.
3. The third way noise can enter the instrument is via the output lines. This is
one of the most overlooked sources of trouble. When an output is driving
an inductive load, such as solenoids, contactors, or relays; a large noise
INSTALLATION CONSIDERATIONS OF ELECTRONIC INSTRUMENTS &
CONTROLS, IN INDUSTRIAL ENVIRONMENTS
spike, several times the supply voltage, is generated every time the output is
turned off. This noise spike, in addition to physically degrading the relay
contact, can radiate off the output lines and into more sensitive areas of the
instrument. The surest way to alleviate this situation is to suppress the noise
spike. It is best to do it at the noise source (See Fig. 2), to prevent noise
currents from flowing in the output lines. There are several ways to do this.
If it is a DC device, then either a diode or a M.O.V. (Metal Oxide Varistor)
can be placed across the device to suppress it. The greater the current load
of the device, the higher wattage diode required. If it is an AC load, then a
M.O.V. or capacitor and resistor in series can be used. It can be seen that the
output lines can be noise sources and as such should be kept away from the
instrument’s own input lines, as well as the input lines of other instruments.
In addition to the foregoing considerations, care should be taken when
connecting input and output returns to the instrument’s common. When
separate input and output commons are provided, they should not be mixed.
When an output device return is connected to an input common (See Fig. 4),
the output current will flow in the input common line. This will cause a noise
voltage to be present, which can affect the operation of the instrument.
In summary, it is much easier to eliminate problems when building up a
system than after it is installed.
DC DEVICE AC DEVICE
Figure 3
Figure 4
IMPROPER GROUND CONNECTIONS
NOISE SUPPRESSED AT LOAD NOISE SUPPRESSED AT INSTRUMENT
Figure 2
Figure 1
NORMAL MODE
COMMON MODE

K
9651-717-767-6511
DESCRIPTION
This Ferrite suppression core is packaged in a nylon case ready to clamp on
a single cable or several cables connecting to electronic equipment. The
purpose of the core is to attenuate conducted Electro-Magnetic Interference
(EMI) in the 25 MHz to 200 MHz range. Increasing the number of cable turns
through the core increases the impedance of the core. A higher impedance
results in greater EMI attenuation.
Placing more than one core on a cable increases the impedance at a slower
rate than adding turns to one core. The impedance for multiple cores is equal to
the sum of each core’s impedance. For a given application, start with a single
core using 2 turns. Add additional turns or additional cores as necessary.
Note: Increasing the number of turns beyond two will tend to degrade
performance at higher frequencies (see Specifications).
Place the cores on the cables as close to the equipment as possible unless the
equipment is mounted in a shielded enclosure and the source of the EMI is from
outside the enclosure. In this case, place the cores on the cable just inside or
outside the entry point of the enclosure.
SPECIFICATIONS
1. MAX. CABLE DIAMETER: 0.390" (9.9 mm)
2. IMPEDANCE (OHMS):
# OF TURNS = The number of times the cable passes through the core.
3. WEIGHT: 0.63 oz. (18 g)
MODEL FCOR - FERRITE SUPPRESSION CORE
# OF TURNS 25 MHz MIN. 100 MHz ±20%
1110 225
2440 900
41760 1000
DIMENSIONS “In inches (mm)”
APPLICATION
Ferrite core used for suppressing common--mode noise.
IN= Common-mode Noise Current
ZL= Load Impedance
VS= Signal Voltage
VN= Common-mode Noise Voltage
FCOR0000Ferrite Suppression CoreFCOR
PART NUMBERDESCRIPTIONMODEL NO.
ORDERING INFORMATION

K
966 www.redlion.net
DESCRIPTION
These devices, when installed across an inductive load, such as a contactor,
solenoid or relay, will suppress transient surges during a switching. This will
enhance relay life and provide increased reliability of operation.
There are two devices available, one for use in 115 volt circuits and one for
use in 230 volt circuits.
INDUCTIVE LOAD SUPPRESSOR
Fully slide PVC insulating tubing over Model ILS leads, as shown.
Caution: Ensure VAC is “OFF” before installing Model ILS.
ORDERING INFORMATION
ILS SPECIFICATIONS *
*NOTE: These devices will suppress most transient surges. However, if the device heats up or stops functioning after a short period of time a higher joules rated device may be required.
MODEL NO. DESCRIPTION PART NUMBER
ILS1 115 VAC Inductive Load Suppressor ILS11500
ILS2 230 VAC Inductive Load Suppressor ILS23000
RATED VOLTAGE
DEVICE MODEL
NUMBER AC VOLTS DC VOLTS
SINGLE PULSE
TRANSIENT
ENERGY JOULES
POWER DISSIPATION
WATTS
CLAMPING VOLTAGE
VOLTS
RATED PEAK
SINGLE PULSE
TRANSIENT CURRENT (AMPS)
ILS1 130 175 6500 80 1.0 340 V @ 100 A
ILS2 275 370 6500 150 1.0 710 V @ 100 A

K
9671-717-767-6511
SPECIFICATIONS
1. R-C Value: 0.1 μf, 47 Ω1/2 Watt (±30%)
2. Max. Line Voltage: 250 V rms or 250 VDC
3. Frequency: DC to 62 Hz
4. Peak Pulse Voltage: 1200 V max.
UL recognized component
(Okaya Electric America, Inc. PN# XEB0471, UL-1414, File # E47474)
GENERAL DESCRIPTION
The R-C Snubber is intended to suppress the “inductive kick” from motors,
solenoids or relay coils. High energy noise spikes are generated whenever
current is interrupted through an inductive load. These noise spikes may
interfere with associated equipment causing erratic operation and may also
accelerate relay contact wear. Applied across an inductive load, the R-C
snubber suppresses the noise spikes and extends contact life.
R-C SNUBBER NOISE AND ARC SUPPRESSOR
APPLICATION
DIMENSIONS In inches (mm)
[All Dimensions are nominal]
Preferred Application Alternate Application
*Use a snubber across all contacts in the load circuit.
ORDERING INFORMATION
The R-C snubber inductive load suppressor should be applied as shown
below. Placing the suppressor across the contact in many cases can work
as well, but for maximum effect, it is best to place the suppressor directly
across the load. All inductive loads in a system should be suppressed in
this manner to avoid mutual interference. The suppressors are effective in
both AC and DC circuits.
MODEL NO. DESCRIPTION PART NUMBER
SNUB R-C Snubber Inductive Load Suppressor SNUB0000

K
968 www.redlion.net
DESCRIPTION
This line filter can be used in AC or DC power supply lines to attenuate
conducted Electro-Magnetic Interference (EMI). EMI is the most common
cause of erratic operation in electronic equipment. Line filters should be
installed close to electronic equipment and mounted directly to a metal
enclosure that is connected to earth ground (protective earth).
Note: Always connect the earth lead of the filter to the power line ground
(protective earth).
The ideal location for the line filter is directly inside the metal enclosure in
which the unit is mounted when the source of EMI is external to the enclosure
(See Figure 1). Mount the filter where the power enters the enclosure. If the
enclosure contains many different types of equipment or EMI generating
devices, such as motors or contactors, then the EMI source may be inside the
enclosure. In this case, mount the line filter as close to the unit as possible (See
Figure 2).
SPECIFICATIONS
1. CURRENT RATING: 1.15 A @ 25°C ; 1 A @ 40°C
2. LEAKAGE CURRENT: 0.21 mA/Lead @ 220 V, 50 Hz
3. INDUCTANCE: 3 mH
4. INSERTION LOSS:
5. CONNECTIONS: Flexible wires 20 AWG
6. HIPOT TEST VOLTAGE: 2 KV, 50 Hz
7. MAX OPERATING VOLTAGE: 250 VAC, 50/60 Hz
8. OPERATING FREQUENCY: DC to 400 Hz
9. TEMPERATURE RANGE: -25°C to +85°C
10. WEIGHT: 2.29 oz. (65 g)
UL recognized component
(Schaffner Electronik AG, PN# FN610-1/07, File # E64388 (M))
ORDERING INFORMATION
MODEL LFIL - GENERAL PURPOSE LINE FILTER
DIMENSIONS “In inches (mm)”
FREQUENCY dB INSERTION LOSS
150 KHz 30
1.0 MHz 47
10 MHz 55
MODEL NO. DESCRIPTION PART NUMBER
LFIL General Purpose Line Filter LFIL0000
BLOCK DIAGRAM
Figure 1
Figure 2
If the panel and enclosure are non-conductive, then the power feed ground is
the only earth ground connection. Connecting only the earth lead of the filter to
the earth ground without mounting the filter directly to a metal enclosure will
not be as effective.

1-717-767-6511
ENCLOSURES
& PANELS
L
969
The Trusted Source for
Innovative Control
Solutions

L
970 www.redlion.net
This page intentionally left blank.

L
9711-717-767-6511
zRUGGED STEEL CONSTRUCTION
zCOMPLETELY SEALED FOR WASH-DOWN
zVERSATILE MOUNTING OPTIONS FOR MACHINE OR DESK-TOP
DESCRIPTION
This series of enclosures is designed for applications requiring a water
resistant instrument enclosure. These rugged enclosures are fabricated of
formed steel with all seams welded to withstand NEMA 4/IP65 wash-down
applications. The kits are coated with a durable flat black polyurethane finish.
Electrical connections to the enclosed instrument are easily made through a
removable access panel at the rear of the enclosure. The panel can be drilled to
accept conduit fittings or other types of wiring connectors.
The enclosures can be mounted free-standing or securely fastened to a
mounting surface with brackets which are provided with each enclosure. The
brackets also allow the enclosures to be raised and/or tilted from the mounting
surface in order to achieve the most favorable operating position. Self-stick
rubber pads are provided which can be applied to the bottom of the enclosure.
These rubber pads will protect the mounting surface and are particularly useful
for free-standing installations.
NEMA 4/IP65 ENCLOSURES
DIMENSIONS In inches (mm)
ORDERING INFORMATION
DESCRIPTION A CB
Legend & Libra Series
NEMA 4 Enclosure
3.50"
(88.9)
7.00"
(177.8)
4.75"
(120.6)
Apollo & IM Series
NEMA 4 Enclosure
3.00"
(76.2)
8.00"
(203.2)
4.75"
(120.6)
Gemini Series
NEMA 4 Enclosure
3.50"
(88.9)
8.00"
(203.2)
6.00"
(152.4)
DESCRIPTION PART NUMBER
ENC40000
Apollo & IM Series NEMA 4/IP65 Enclosure ENC50000
Gemini Series NEMA 4/IP65 Enclosure ENC60000
Legend & Libra Series NEMA 4/IP65 Enclosure

L
972 www.redlion.net
Installation
The RLC ASTRO LINE products (GEMINI, LIBRA, APOLLO) have side
openings in the case for panel mounting latches, special latches are supplied
with each enclosure to engage the latch openings and securely retain the
instrument. The installation procedure is as follows:
1. Verify that the enclosure brackets are installed into the enclosure with the
bracket screws backed out more than half way from the brackets but keeping
the screw head flush against the enclosure rear.
2. Slide the panel gasket over the rear of the unit until it is against the back of
the bezel.
3. Hold the unit on its side so that a side bracket opening is facing up and insert
the unit into the enclosure front opening.
4. The bracket hook should fall into the unit bracket opening. Keeping the meter
and enclosure on their side, turn the bracket screw tight.
5. Flip the meter and enclosure to the other side.
6. The other bracket hook should fall into the unit bracket opening. Keeping the
meter and enclosure on their side, turn the other bracket screw tight.
7. Verify that both screws are tight enough so that the front panel gasket is
compressed to at least 50% of it original thickness.
8. Install any connectors or conduit fittings to the rear access panel. Make the
desired wiring connections to the enclosed unit.
9. Install the rear panel gasket with the adhesive side against the enclosure and
the screw clearance holes aligned with the threaded holes in the enclosure.
10. After all electrical connections have been made, attach the rear access panel
to the rear of the enclosure with the four screws and washers provided.
Mounting Bracket Installation
Mounting Options
Installation

L
9731-717-767-6511
NEMA 4 PAX SERIES ENCLOSURES
ENC5B & ENC5C - PLASTIC ENCLOSURES
ORDERING INFORMATION
DESCRIPTION
These enclosures are designed for applications requiring a water resistant
instrument enclosure. The ENC5B and ENC5C enclosures are fabricated of
polycarbonate and are designed to withstand NEMA 4X/IP65 wash-down
applications. The enclosures must be drilled to accept conduit fittings or other
types of wiring connectors. The enclosures can be used free-standing, or
securely fastened to a mounting surface. The enclosures are precut for either
one or two meters. When properly installed, the meter and the enclosure can
withstand NEMA 4X wash-down applications.
Electrical connections to the enclosed instrument are easily made by drilling
the desired location on the back or side of the enclosure. Select the proper drill
size to accommodate the conduit fitting or other wire connector. To maintain the
enclosure NEMA 4X rating, sealed connectors must be used. Also enclosed are
wall fastening lugs. which can be used to easy mount the enclosure to a wall.
ENC5C000
ENC5B000
NEMA 4X/IP65 Enclosure for One PAX Meter
ENC5C
ENC5B
PART NUMBERDESCRIPTIONMODEL NO
ENC5B AND ENC5C INSTALLATION
It is recommended to wire the unit before mounting it in the enclosure to ensure good electrical connections.
The following steps outline the most common sequence for installing a unit.
1. Determine the location of the conduit fitting and drill the necessary hole. Install the fitting and bring the wiring
into the enclosure.
2. Slide the panel gasket over the rear of the unit to the back of the bezel.
3. Install the unit through the opening in the front of the lid until the bezel flange contacts the panel.
4. Slide the mounting clip over the rear of the unit until the mounting clip is against the inside of the enclosure.
The mounting clip has latching features which engage into mating features on the unit’s housing.
Note: It is necessary to hold the unit in place when sliding the mounting clip into position.
5. While holding the unit in place, push the panel latch over the
rear of the unit so that the tabs of the panel latch engage in
the slots on the case. The panel latch should be engaged in
the farthest forward slot possible. To achieve a proper seal,
tighten the latch screws evenly until the unit is snug in the
panel (Torque to approximately 7 in-lbs [79 N-cm]). Do
not over-tighten the screws.
6. If the gasket is not adequately compressed, and
the mounting screws can no longer be turned,
loosen the mounting screws and check that the
mounting clip is latched as close as possible to the
inside of enclosure. Repeat the procedure for
tightening the screws.
7. Connect the necessary wires to the unit for the
application desired.
8. Assemble the enclosure with the screws provided.
Alternately tighten each screw to ensure uniform
gasket pressure.
NEMA 4X/IP65 Enclosure for Two PAX Meters
For More information on Pricing, Enclosures & Panel Mount Kits, refer to the
RLC Catalog or contact your local RLC Distributor.
ORUGGED POLYCARBONATE CONSTRUCTION
OCOMPLETELY SEALED FOR NEMA 4X/IP65 WASH-DOWN
OEASY MOUNTING OPTIONS
DIMENSIONS In inches (mm)

L
974 www.redlion.net
DESCRIPTION
The ENC5A enclosure is fabricated of formed steel with all seams
welded to withstand NEMA 4/IP65 wash-down applications. The kit is
coated with a durable flat black polyurethane finish.
Electrical connections to the enclosed instrument are easily made
through a removable access panel at the rear of the enclosure. The panel
must be drilled to accept conduit fittings or other types of wiring
connectors.
The enclosure can be used free-standing or securely fastened to a
mounting surface with brackets which are provided with each enclosure.
The brackets also allow the enclosure to be raised and/or tilted from the
mounting surface in order to achieve the most favorable operating
position. Self-stick rubber pads are provided which can be applied to the
bottom of the enclosure. These rubber pads will protect the mounting
surface and are particularly useful for free-standing installations. ORDERING INFORMATION
ENC5A INSTALLATION
1. Mark the location on the rear panel for your wire connector or conduit fitting, and drill the
necessary hole. Connect your wire connector or fitting to the rear panel.
2. Remove the center sections of the front and rear panel gaskets. These centers contain
the optional foam rubber feet for the enclosure.
3. Apply the adhesive side of the panel gasket to the front and rear openings of the
enclosure. DO NOT APPLY THE ADHESIVE SIDE OF THE GASKET TO
THE FRONT OR REAR PANELS.
4. Install the unit to the front panel according to the standard panel
installation instructions found in the product literature.
5. Route the wires to be connected to the unit from the conduit fitting
through the rear of the enclosure and out the front.
6. Connect the necessary wires to the unit for the application desired.
7. Attach the front and rear panels to the enclosure with the screws
and washers provided. Alternately tighten each screw to ensure
uniform gasket compression. Visually inspect the sponge rubber
gasket. The gasket should be compressed to about 75 to 80% of
its original thickness.
8. For a free-standing enclosure, apply the self-stick foam
rubber pads to the features on the bottom of the enclosure
to protect the mounting surface.
9. To securely mount the enclosure, attach the adjustable
mounting brackets to the enclosure using the washers and
bolts provided. Secure the mounting brackets to the desired
mounting location. The mounting screws to attach the
brackets to your surface are not provided due to the variety
of installation options available.
ENC5A000ENC5A
PART NUMBERDESCRIPTIONMODEL NO.
ENC5A - STEEL ENCLOSURE
ORUGGED STEEL CONSTRUCTION
OCOMPLETELY SEALED FOR NEMA 4/IP65 WASH-DOWN
OVERSATILE MOUNTING OPTIONS FOR MACHINE OR DESKTOP
For More information on Pricing, Enclosures & Panel Mount Kits, refer to the
RLC Catalog or contact your local RLC Distributor.
DIMENSIONS In inches (mm)
NEMA 4/IP65 Enclosure for PAX & Short Apollo

L
9751-717-767-6511
MODEL ENC8 - NEMA 4 ENCLOSURES FOR CUB4, CUB5, DT8 & DT9 UNITS
ENC8A & ENC8B - PLASTIC ENCLOSURES
ENC8A DIMENSIONS In inches (mm)
ENC8B DIMENSIONS In inches (mm)
ORDERING INFORMATION
DESCRIPTION
These enclosures are designed for applications requiring a water resistant
instrument enclosure. The enclosures are fabricated of polycarbonate and are
designed to withstand NEMA 4X/IP65 wash-down applications. The
enclosures must be drilled to accept conduit fittings or other types of wiring
connectors. The enclosures can be used free-standing, or securely fastened to a
mounting surface.
ENC8B000
ENC8A000
Plastic Enclosure for single units
ENC8B
ENC8A
PART NUMBERDESCRIPTIONMODEL NO
ENC8A INSTALLATION
It is recommended to wire the unit before mounting it in the enclosure to
ensure good electrical connections. The following steps outline the most
common sequence for installing a unit without an MLPS1 attached.
1. Determine the location of the conduit fitting and drill the necessary hole.
Install the fitting and bring the wiring into the enclosure.
2. Slide the panel gasket over the rear of the unit to the back of the bezel.
3. Assemble nut fastener and mounting screw onto both sides of the mounting
clip. The tip of the screw should not project from the hole in mounting clip.
4. Install the unit through the opening in the front of the lid until the bezel
flange contacts the panel.
5. Slide the mounting clip over the rear of the unit until the mounting clip is
against the inside of the enclosure. The mounting clip has latching
features which engage into mating features on the unit’s
housing.
Note: It is necessary to hold the unit in place when
sliding the mounting clip into position.
6. Alternately tighten each screw to ensure uniform
gasket pressure. Visually inspect the front panel
gasket. The gasket should be compressed to about
75 to 80% of its original thickness (Recommended
torque is 28 to 36 in-oz.). If not, gradually turn
mounting screws to further compress the gasket.
7. If the gasket is not adequately compressed, and the
mounting screws can no longer be turned, loosen the
mounting screws and check that the mounting clip is
latched as close as possible to the inside of enclosure.
Repeat the procedure for tightening the screws.
8. Connect the necessary wires to the unit for the application desired.
9. Assemble the enclosure with the screws
provided. Alternately tighten each screw
to ensure uniform gasket pressure.
Plastic Enclosure for units with an MLPS1 attached
For More information on Pricing, Enclosures & Panel Mount Kits, refer to the
RLC Catalog or contact your local RLC Distributor.

L
976 www.redlion.net
ENC8B w/ MLPS1 Installation
Installing a unit with an MLPS1 attached requires some planning. It is
recommended that the unit with the MLPS1 attached be temporarily installed
in the enclosure to determine the best location for the conduit fitting to avoid
interference with the MLPS1.
1. Determine the location of the conduit fitting and drill the necessary hole.
Install the fitting and bring the wiring into the enclosure.
2. Slide the panel gasket over the rear of the unit to the back of the bezel.
3. Remove the common and V+ screw terminals from the rear of the unit (save
for later use) and replace them with the stand-offs (supplied with the
MLPS1).
4. Assemble nut fastener and mounting screw onto both sides of the mounting
clip. The tip of the screw should not project from the hole in mounting clip.
5. Install the unit through the opening in the front of the lid until the bezel
flange contacts the panel mounted gasket.
6. Slide the mounting clip over the rear of the unit until the mounting clip is
against the inside of the enclosure. The mounting clip has latching
features which engage into mating features on the unit’s housing.
Note: It is necessary to hold the unit in place when sliding the
mounting clip into position.
7. Alternately tighten each screw to ensure uniform gasket pressure. Visually
inspect the front panel gasket. The gasket should be compressed to about 75
to 80% of its original thickness (Recommended torque is 28 to 36 in-oz.).
If not, gradually turn mounting screws to further compress the gasket.
8. If the gasket is not adequately compressed, and the mounting screws can no
longer be turned, loosen the mounting screws and check that the mounting
clip is latched as close as possible
to the inside of enclosure.
Repeat the procedure for
tightening the screws.
9. Mount the MLPS1 and optional sensor wires needed, to the stand-offs using
the screw terminals from the unit with the supplied square washers.
10. Connect AC power to the terminal block of the MLPS1.
11. After all electrical connections have been made, assemble the enclosure
with the screws provided. Alternately tighten each screw to ensure uniform
gasket pressure.
DIMENSIONS In inches (mm)
DESCRIPTION
This enclosure is designed for use with the CUB4, CUB5, DT8 & DT9 units.
The enclosures are large enough to accommodate a Micro-line Power Supply
(MLPS1) attached to the unit. These rugged enclosures are fabricated of formed
steel with all seams welded to withstand NEMA 4/IP65 wash-down
applications. The kits are coated with a durable black polyurethane finish.
The holes for conduit fittings or other types of wiring connectors can be
drilled through the removable rear access panel, or through the enclosure itself.
The enclosures can be free standing or securely fastened to a mounting
surface with the brackets and hardware found in the mounting kit (provided
with the enclosure). The brackets also allow the enclosure to be raised and/or
tilted from the mounting surface in order to achieve the most favorable
operating position. Provided are four self-stick foot pads that can be applied to
the bottom of the enclosure to protect the mounting surface. The foot pads are
particularly useful for free standing installations.
PART NUMBERMODEL NO
ENC80000
DESCRIPTION
ENC8
NEMA 4/IP65 ENCLOSURE
For More information on Pricing, Enclosures & Panel Mount Kits,
refer to the RLC Catalog or contact your local RLC Distributor.
ORDERING INFORMATION
ENC8 - STEEL ENCLOSURE

L
9771-717-767-6511
ENC8 w/ MLPS1 Installation
Installing a unit with an MLPS1 attached requires some planning. It is
recommended that the unit with the MLPS1 attached be temporarily installed
in the enclosure to determine the best location for the conduit fitting to avoid
interference with the MLPS1.
1. Mark the location of the conduit fitting and drill the necessary hole.
2. Apply adhesive side of panel gasket to rear enclosure opening.
DO NOT APPLY THE ADHESIVE SIDE OF THE GASKET TO THE
ACCESS PANEL.
3. Slide the panel gasket over the rear of the unit to the back of the bezel.
4. Remove the common and V+ screw terminals from the rear of the unit (save
for later use) and replace them with the hex drive stand-offs (supplied with
the MLPS1).
5. Assemble nut fastener and mounting screw onto both sides of the mounting
clip. The tip of the screw should not project from the hole in mounting clip.
6. Route the wire to be connected to the unit from the conduit fitting through the
mounting clip, and then through the rear of the enclosure and out the front.
7. Connect the necessary wires to the unit for the application desired.
8. Install the unit through the opening in the front of the enclosure until the
bezel flange contacts the panel mounted gasket.
9. Slide the mounting clip over the rear of the unit until the mounting clip is
against the inside of the enclosure. The mounting clip has latching features
which engage into mating features on the unit’s housing.
Note: It is necessary to hold the unit in place when
sliding the mounting clip into
position.
10. Alternately tighten each screw to ensure uniform gasket pressure. Visually
inspect the front panel gasket. The gasket should be compressed to about 75
to 80% of its original thickness (Recommended torque is 28 to 36 in-oz.). If
not, gradually turn mounting screws to further compress the gasket.
11. If the gasket is not adequately compressed, and the mounting screws can no
longer be turned, loosen the mounting screws and check that the mounting
clip is latched as close as possible to the inside of enclosure. Repeat the
procedure for tightening the screws.
12. Connect AC power to the terminal block of the MLPS1.
13. Mount the MLPS1 and optional sensor wires needed, to the stand-offs
using the screw terminals from the unit with the supplied square washers.
14. After all electrical connections have been made, attach the rear access panel
to the enclosure with the eight screws provided.
15. Alternately tighten each screw to ensure uniform gasket pressure. Visually
inspect the sponge rubber gasket. The gasket should be compressed to about
75 to 80% of its original thickness.
ENC8 INSTALLATION
It is recommended to wire the unit before mounting it in the enclosure to
ensure good electrical connections. The following steps outline the most
common sequence for installing a unit without an MLPS1 attached.
1. Determine the location of the conduit fitting and drill the necessary hole.
2. Apply adhesive side of panel gasket to rear enclosure opening.
DO NOT APPLY THE ADHESIVE SIDE OF THE GASKET TO THE
ACCESS PANEL.
3. Slide the panel gasket over the rear of the unit to the back of the bezel.
4. Assemble nut fastener and mounting screw onto both sides of the mounting
clip. The tip of the screw should not project from the hole in mounting clip.
5. Route the wire to be connected to the unit from the conduit fitting through the
mounting clip, and then through the rear of the enclosure and out the front.
6. Connect the necessary wires to the unit for the application desired.
7. Install the unit through the opening in the front of the enclosure until the
bezel flange contacts the panel.
8. Slide the mounting clip over the rear of the unit until the
mounting clip is against the inside of the enclosure. The
mounting clip has latching features which engage into
mating features on the unit’s housing.
Note: It is necessary to hold the unit in place when
sliding the mounting clip into position.
9. Alternately tighten each screw to ensure uniform
gasket pressure. Visually inspect the front panel
gasket. The gasket should be compressed to about
75 to 80% of its original thickness (Recommended
torque is 28 to 36 in-oz.). If not, gradually turn
mounting screws to further compress the gasket.
10. If the gasket is not adequately compressed, and the mounting screws can
no longer be turned, loosen the mounting screws and check that the
mounting clip is latched as close as possible to
the inside of the enclosure. Repeat the
procedure for tightening the screws.
11. Attach the rear access panel to the enclosure
with the eight screws provided.
12. Alternately tighten each screw to
ensure uniform gasket pressure.
Visually inspect the sponge rubber
gasket. The gasket should be
compressed to about 75 to 80% of its
original thickness.

L
978 www.redlion.net
MOUNTING THE ENCLOSURE
1. Self-stick foot pads may be applied to the features on the bottom of the enclosure to
protect the mounting surface.
2. To securely mount the enclosure, attach the adjustable mounting brackets to the
enclosure using the plastic washers and screws. Mounting brackets may be attached to
the top or bottom of the enclosure.
3. Secure the adjustable mounting brackets to mounting location with the screws provided.

L
9791-717-767-6511
OENGINEERING UNIT LABELS
OBRACKETS FOR BASE, CEILING, OR WALL MOUNTING
ONEMA 4/IP65 ENCLOSURE FOR WASHDOWN ENVIRONMENTS
OFRONT PANEL SHROUD FOR ENHANCED VIEWING
LPAX ENCLOSURE, MOUNTING AND LABEL ACCESSORIES
ENC9-NEMA 4/IP65 LPAX ENCLOSURE
The ENC90000 NEMA 4/IP65 enclosure provides a means of mounting the
LPAX display in dirty or washdown environments. The enclosure comes with
all the gaskets, hardware (except the mounting screws), and brackets required
to base, ceiling, or wall mount the LPAX display. The mounting screws to
attach the brackets to your surface are not provided due to the variety of
installation options available.
Rotate bracket for other
installation choices.
ENCLOSURE ASSEMBLY
1. Before drilling a hole in the enclosure for your wire connector or fitting,
ensure that the location you have chosen allows enough clearance around the
MPAX module.
2. Remove the center section of the gasket provided with the LPAX, and slide
it over the rear of the display and onto the mounting studs.
3. Insert the LPAX into the enclosure as illustrated. Install six #10-32 keps nuts
(supplied with the LPAX) and tighten evenly for uniform gasket
compression. The gasket should be compressed to about 75 to 80% of its
original thickness. Do not overtighten the nuts.
4. Run the wires through the hole that was drilled in the enclosure, and attach
them to the LPAX. Wiring instructions are provided in the appropriate PAX
bulletin shipped with the MPAX Module.
5. Remove the center section of the rear cover gasket. Apply the gasket to the
rear panel of the enclosure by inserting the screws through the panel and into
the holes in the gasket. Position the panel on the enclosure and start all of the
screws. Alternately tighten each screw to ensure uniform gasket
compression. The gasket should be compressed to about 75 to 80% of its
original thickness.
6. To securely mount the enclosure, attach the adjustable mounting brackets to
the enclosure using the washers and screws provided.
7. Secure the mounting brackets to the desired mounting location.
DIMENSIONS In inches (mm)
ORDERING INFORMATION
ENC90000NEMA 4 Enclosure for LPAXENC9
PART NUMBERSDESCRIPTIONMODEL NO.

L
980 www.redlion.net
MBLPAX-MOUNTING BRACKETS
The MBLPAX mounting brackets provide an easy way to base, wall, or
ceiling mount the LPAX display. The MBLPAX kit comes with two sets of
brackets, and most of the hardware to mount the LPAX at virtually any angle.
The screws to attach the brackets to your surface are not provided due to the
variety of installation options available.
Notes:
1. When installing the brackets, the fastener bracket must be installed on the
studs of the LPAX as shown.
2. The mounting bracket may be installed with the flange facing in or out.
3. The rubber washers provided must be installed between the two mounting
brackets during assembly.
4. The screws for fastening the brackets to a surface are not provided in the
MBLPAX kit. The holes are 0.2" in diameter and will accept size #10 screws
and smaller.
ASSEMBLY
ORDERING INFORMATION
DESCRIPTION
MB Mounting Bracket for LPAX MBLPAX00
MODEL NO. PART NUMBERS
DIMENSIONS In inches (mm)
ORDERING INFORMATION
SHRLPAX0Shroud for LPAXSHR
PART NUMBERSDESCRIPTIONMODEL NO.
SHROUD
The optional shroud enhances the readability of the LPAX unit in areas with
high intensity overhead light sources. The shroud can be used in conjunction
with any installation (panel mount, enclosure, or mounting brackets). When
properly installed, the shroud will not affect the integrity of a NEMA 4
installation.
INSTALLATION
1. Remove the center section of the gasket provided with the LPAX, and slide
it over the rear of the display and onto the mounting studs.
2. Orient the shroud and gasket as shown in the assembly figure, and place it
over the LPAX. The studs of the LPAX should now be protruding through the
rear of the shroud.
3. Follow the remaining installation instructions for panel mounting, bracket
mounting or enclosure mounting as appropriate.
DIMENSIONS In inches (mm)

L
9811-717-767-6511
NEMA 4 1/16 DIN SERIES ENCLOSURES
ENC11A & ENC11B - PLASTIC ENCLOSURES
ORDERING INFORMATION
DESCRIPTION
These enclosures are designed for applications requiring a water resistant
instrument enclosure. The ENC11A and ENC11B enclosures are fabricated of
polycarbonate and are designed to withstand NEMA 4X/IP65 wash-down
applications. The enclosures must be drilled to accept conduit fittings or other
types of wiring connectors. The enclosures can be used free-standing, or
securely fastened to a mounting surface. The enclosures are precut for either
one or two meters. When properly installed, the meter and the enclosure can
withstand NEMA 4X wash-down applications.
Electrical connections to the enclosed instrument are easily made by drilling
the desired location on the back or side of the enclosure. Select the proper drill
size to accommodate the conduit fitting or other wire connector. To maintain the
enclosure NEMA 4X rating, sealed connectors must be used. Also enclosed are
wall fastening lugs. which can be used to easy mount the enclosure to a wall.
ENC11B00
ENC11A00
NEMA 4X/IP65 Enclosure for One 1/16 DIN Meter
ENC11B
ENC11A
PART NUMBERDESCRIPTIONMODEL NO
ENC11A AND ENC11B INSTALLATION
It is recommended to wire the unit before mounting it in the enclosure to ensure good electrical connections. The
following steps outline the most common sequence for installing a unit.
1. Determine the location of the conduit fitting and drill the necessary hole. Install the fitting and bring the wiring
into the enclosure.
2. Slide the panel gasket over the rear of the unit to the back of the bezel.
3. Install the unit through the opening in the front of the lid until the bezel flange contacts the panel.
4. Slide the mounting clip over the rear of the unit until the mounting clip is against the inside of
the enclosure. The mounting clip has latching features which engage into mating features
on the unit’s housing.
Note: It is necessary to hold the unit in place when sliding the mounting clip
into position.
5. While holding the unit in place, push the panel latch over the rear of the
unit so that the tabs of the panel latch engage in the slots on the case.
The panel latch should be engaged in the farthest forward slot possible.
To achieve a proper seal, tighten the latch screws evenly until the unit
is snug in the panel (Torque to approximately 7 in-lbs [79 N-cm]). Do
not over-tighten the screws.
6. If the gasket is not adequately compressed, and the mounting
screws can no longer be turned, loosen the mounting
screws and check that the mounting clip is latched as
close as possible to the inside of enclosure. Repeat the
procedure for tightening the screws.
7. Connect the necessary wires to the unit for the
application desired.
8. Assemble the enclosure with the screws provided. Alternately
tighten each screw to ensure uniform gasket pressure.
NEMA 4X/IP65 Enclosure for Two 1/16 DIN Meters
ORUGGED POLYCARBONATE CONSTRUCTION
OCOMPLETELY SEALED FOR NEMA 4X/IP65 WASH-DOWN
OEASY MOUNTING OPTIONS
DIMENSIONS In inches (mm)

L
982 www.redlion.net
ORUGGED STEEL CONSTRUCTION
OCOMPLETELY SEALED FOR WASH-DOWN
OVERSATILE MOUNTING OPTIONS FOR MACHINE OR DESKTOP
DESCRIPTION
This enclosure is designed for applications requiring a water resistant
instrument enclosure. The enclosure is fabricated of formed steel with all seams
welded to withstand NEMA 4/IP65 wash-down applications. The kit is coated
with a durable flat black polyurethane finish.
Electrical connections to the enclosed instrument are easily made through a
removable access panel at the rear of the enclosure. The panel must be drilled
to accept conduit fittings or other types of wiring connectors.
The enclosure can be used free-standing or securely fastened to a mounting
surface with brackets which are provided with each enclosure. The brackets also
allow the enclosure to be raised and/or tilted from the mounting surface in order
to achieve the most favorable operating position. Self-adhering rubber pads are
provided which can be applied to the bottom of the enclosure. These rubber pads
will protect the mounting surface and are particularly useful for free-standing
installations.
DIMENSIONS In inches (mm)
MODEL NO. DESCRIPTION PART NUMBER
ENC11 NEMA 4 Enclosure for 1/16 DIN Units ENC11000
ORDERING INFORMATION
ENC11 - STEEL ENCLOSURE

L
9831-717-767-6511
OLIGHT-WEIGHT ALUMINUM CONSTRUCTION
OCOMPLETELY SEALED FOR WASH-DOWN
OMOUNTING CHANNELS FOR VERSATILE INSTALLATION
DESCRIPTION
The NEMA 4/IP65 Large Display Enclosure is designed to protect the
EPAX from dust and hose directed water, when properly installed. This light-
weight all aluminum unit utilizes welded seams and neoprene gaskets to meet
NEMA 4/IP65 requirements. A textured, polyurethane coating protects against
corrosion and is scratch resistant. Figure 1 below shows the overall
dimensions of the Enclosure. The Display Enclosure with Mounting Channels
weighs 9 pounds (4.1 Kg).
DIMENSIONS In inches (mm) MOUNTING
Provided with the enclosure are two ¼-20 UNC x 1" hex
bolts, two ¼-20 UNC “strut nuts”, and two ¼" washers. The
“strut nuts” can be installed anywhere in the channel by
inserting them, spring side down, into the channels, then
rotating them 90 degrees clockwise until the notches engage
with the lips of the channel. The bolts and washers provided
allow mounting to surfaces ¼" to ½" thick (6.4 to 12.7 mm).
Use longer bolts for mounting to thicker surfaces. Bolts
fabricated from materials other than steel are not recommended.
*Housing Only ** Overall Including Screwheads
Figure 1 Figure 3
TYPICAL INSTALLATIONS FOR NEMA 4/IP65 ENCLOSURE
Figure 2
NEMA 4/IP65 LARGE DISPLAY ENCLOSURE & SHROUD FOR EPAX
BASEMOUNT WITH WATERTIGHT
CABLE CONNECTOR ENTERING
THROUGH REAR PANEL.
Removing the rear panel of the enclosure allows access to the Display for
service. Either the rear panel or housing may be drilled to accept sealed conduit
fittings, liquid-tight cable fittings or other types of wiring connectors. The
enclosure may be attached to horizontal surfaces located above or below it,
using the mounting channels provided.
SUSPENDED FROM CONDUIT
WITH SEALED FITTINGS.
(SHOWN WITH SHROUD).
BEAM MOUNT WITH SEALED
CONDUIT ENTERING FROM
RIGHT SIDE.
Picture includes the EPAX, Nema Enclosure, and Shroud

L
984 www.redlion.net
EPAXENSH
SHREPAX0
EPAX NEMA 4/IP65 Enclosure and Shroud
Shroud for EPAX
EN/SH
SHR
ENC12000NEMA 4/IP65 Enclosure for EPAX
ENC12
PART NUMBERSDESCRIPTIONMODEL NO.
ORDERING INFORMATION
ASSEMBLY AND INSTALLATION PROCEDURE
1. Install the two mounting channels on the enclosure housing using
the four #8-32 screws provided and then insert the strut nuts
(provided). Invert enclosure if base mounting.
2. If the wiring is to be routed through the housing, make sure that
the mounting channels are oriented properly before drilling, so
the Display will be readable. Wiring is generally brought into the
right side of the housing or rear panel, closest to the terminals of
the MPAX module. Drill the proper size hole in the housing or
rear panel for the wiring connector or sealed conduit fitting and
attach the fitting(s)
3. Before installing the Display into the housing, be sure that the
mounting channels are oriented properly for the type of installation
planned. Place the gasket that is supplied with the Display over the
studs extending from the front panel of the display.
4. If using the shroud, refer to the Shroud Installation Procedure.
Place the Display with gasket through the holes in the housing as
shown at right. Working back and forth across the stud pattern,
install the #10-32 keps nuts supplied with the Display on the
studs. Tighten firmly.
5. Mount the housing, using the strut nuts and steel ¼-20 UNC bolts
and washers, as shown in figure 4.
6. Connect the wires to the Display per the instructions included
with the personality board.
7. Remove the center section of the rear panel gasket. Apply the
gasket to the rear panel of the enclosure by inserting the #8-32
screws through the panel and into the holes in the gasket. Position
the panel on the housing, start all of the screws, then firmly tighten
them in a pattern working back and forth across the rear panel.
DIMENSIONS FOR THE EPAX DISPLAY SHROUD
The optional EPAX Display Shroud enhances the readability of the
Displays that are installed in areas with high intensity overhead light sources.
The Shroud can be used with the EPAX Display in any installation, (panel
mount, NEMA 4/IP65 Enclosure, or Universal Mounting Bracket). When
properly assembled, the Shroud will not affect the integrity of a NEMA
4/IP65 installation. The Shroud weighs 1.0 pounds (0.45 Kg).
SHROUD INSTALLATION PROCEDURE
Installing The Shroud On An EPAX Display In A
NEMA 4/IP65 Enclosure Or Panel
1. Place a gasket over the studs extending from the rear of the front
panel of the Display.
2. Orient the shroud as shown in Figure 6, and place it over the
display. The studs of the display should now be protruding
through the rear of the shroud.
3. Place the other gasket over the studs.
4. Install the unit into the panel or enclosure using the #10-32 keps
nuts that are supplied with the Display. Tighten the nuts firmly.
Nema 4/IP65 Shroud Installation
*Supplied with EPAX.
*Supplied with EPAX.
DIMENSIONS In inches (mm)
Figure 4
Figure 5
Figure 6

L
9851-717-767-6511
MOUNTING PROCEDURE
1. Mark and drill holes (3/16" Dia.) in base panel for attaching the base mount
legs. Use the appropriate Model PMK panel as a template for marking the
mounting hole locations. NOTE: RECOMMENDED MINIMUM BASE
PANEL THICKNESS IS 1/8" TO SUPPORT THE WEIGHT OF THE
INDICATOR WITHOUT PANEL DISTORTION.
2. Attach the base mount legs to the base panel using the machine screws and
nuts provided or user supplied hardware if panel thickness exceeds 1/4".
3. Mount the indicator to the Model PMK panel, utilizing the mounting clips
provided, in accordance with the panel mounting instructions supplied with
the individual unit.
4. Attach the PMK panel and unit assembly to the base mount legs by using the
self-tapping screws provided.
MODEL BMK3 & BMK4 - BASE MOUNT KITS
DESCRIPTION
The Model BMK3 and 4 Base Mount Kits provide the necessary
equipment for base mounting various units. The kits are coated with a
durable flat black polyurethane finish and consist of two mounting legs
which attach to the customer’s base panel, using the hardware provided.
Model PMK3 and 4 are separate front panels, available for different
sized units. After mounting the units to the appropriate PMK panel, the
entire assembly is then attached to the mounting legs.
BASE MOUNT DIMENSIONS In inches (mm)
BMK3 BMK4

L
986 www.redlion.net
PMK3A PMK3B PMK3C
PMK4A PMK4B
PANEL DIMENSIONS In inches (mm)
ORDERING INFORMATION
MODEL NO. DESCRIPTION PART NUMBER
BMK 3 Base Mount Kit For Legend, Lynx And Libra BMK30000
BMK 4 Base Mount Kit For Gemini, Apollo, IM, PAX, TCU, PCU, TSC And PSC BMK40000
PMK 3A Mounting Panel For Lynx PMK3A000
PMK 3C
PMK 3B
Mounting Panel For C48, T48, P16 And T16
Mounting Panel For Libra And Legend
PMK3C000
PMK3B000
PMK 4A Mounting Panel For Gemini PMK4A000
PMK 4B Mounting Panel For IM, Apollo, PAX, TCU, PCU, TSC And PSC PMK4B000

L
9871-717-767-6511
INSTALLATION
BMK6 - Open Base Mount
Before attaching the BMK6 to the panel or frame, it is recommended to wire and mount the unit to
ensure good electrical connections. The following steps outline the most common sequence for installing
a unit without an MLPS attached.
1. Install the grommet (provided in the accessory bag) in the hole in the base mount.
2. Assemble nut fastener and mounting screw onto both sides of the mounting clip. The
tip of the screw should not project from the hole in mounting clip.
3. Slide the panel gasket over the rear of the unit to the back of the bezel.
Then install the unit through the opening in the front of the base mount
until the bezel flange makes contact.
4. Slide the mounting clip over the rear of the unit until the
mounting clip is against the inside of the base mount. The
mounting clip has latching features which engage into
mating features on the unit’s housing.
Note: It is necessary to hold the unit in place when sliding the
mounting clip into position.
5. Alternately tighten each screw to ensure uniform gasket
compression.
6. Connect the necessary wires from the grommet to the unit.
7. Mount the base mount enclosure to the panel or frame as application
requires. Four bolts and nuts are provided with the Base Mount Kit.
DESCRIPTION
The BMK6, BMK7 and BMK7A base mounts are designed for use with the
CUB4, CUB5, and DT8 units. The BMK7 is large enough to accommodate a
Micro-line Power Supply (MLPS) attached to a CUB4 or DT8. The BMK7A
will accommodate a Micro-line Power Supply (MLPS) attached to a CUB5.
The wires can either be brought through the panel on which the unit is
mounted, or through the hole(s) in the enclosure itself. Grommets are provided
to insert in the hole(s) on the base mount (where applicable) when wires are
routed through it. The grommets are in the accessory bag with each base mount
unit, along with four nuts and bolts for mounting.
The base mounts are constructed of steel with a textured black finish.
MODEL BMK6, BMK7 & BMK7A - BASE MOUNT KIT FOR CUB4, CUB5 & DT8 UNITS
BMK7/BMK7A - CLOSED BASE MOUNT KIT
(With or Without MLPS)
BMK6 - OPEN BASE MOUNT KIT
(Without MLPS)
DIMENSIONS In inches (mm)
A B C
3.45
(87.63)
2.80
(71.12)
4.00
(101.50)
3.50
(88.90)
MODEL
BMK7
BMK7A
4.00
(101.50)
4.62
(117.35)

L
988 www.redlion.net
INSTALLATION
BMK7/BMK7A - Closed Base Mount
Before attaching the BMK7/BMK7A to the panel or frame, it is
recommended to wire and mount the unit to ensure good electrical
connections. The following steps outline the most common sequence for
installing a unit with an MLPS attached.
1. Install the grommets (provided in the accessory bag) in the holes
in the base mount.
2. Slide the panel gasket over the rear of the unit to the back
of the bezel.
3. Remove the common and V+ screw terminals
from the rear of the unit (save for later
use), and replace them with the
hex drive stand-offs with
round washers (supplied
with the MLPS).
4. Assemble nut fastener
and mounting screw
onto both sides of the
mounting clip. The tip
of the screw should not
project from the hole in
mounting clip.
5. Route the wires from
the grommets, through
the mounting clip, into
the rear of the base mount
and out the front.
6. Connect the wires necessary for the application to the unit.
7. Install the unit through the opening in the front of the base mount until the
bezel flange makes contact.
8. Slide the mounting clip over the rear of the unit until the mounting clip is
against the inside of the base mount. The mounting clip has latching
features which engage into mating features on the unit’s housing.
Note: It is necessary to hold the unit in place when sliding the mounting
clip into position.
9. Alternately tighten each screw to ensure uniform gasket compression.
10. Connect AC power to the terminal block of the MLPS.
Note: Make sure the AC selector switch is set to the appropriate position
before applying power to the unit.
11. Mount the MLPS and optional sensor wires needed to the stand-offs using
the screw terminal from the unit with the supplied square washers.
12. Mount the base mount enclosure to the panel or frame as application
requires. Four bolts and nuts are provided with the Base Mount Kit.
BMK70000
BMK7A000
BMK60000
OPEN BASE MOUNT KIT
BMK
PART NUMBERDESCRIPTIONMODEL NO
ORDERING INFORMATION
CLOSED BASE MOUNT KIT (DT8, CUB4)
CLOSED BASE MOUNT KIT (CUB5)
For More information on Pricing, Enclosures & Panel Mount Kits refer to
the RLC Catalog or contact your local RLC Distributor.

L
9891-717-767-6511
INSTALLATION
1. Mark and drill holes (5/32") in existing panel using the
BMK8 as a template. An addition hole may be cut in the
existing panel for wire feed.
2. Remove the panel latch (mounting clip) from the
CUB7 unit and insert the mounting screws (supplied
with the CUB7) on both sides of panel latch. The tip
of the screw should not project from the hole in the
panel latch (mounting clip).
3. Slide the CUB7 through the cut out in the BMK8 until the
bezel flange contacts the base mount. The CUB7 panel gasket
is optional.
4. Slide the panel latch (mounting clip) over the rear of the unit and
towards the front of the unit until it latches firmly against the inside of the
base mount. Note: It is necessary to hold the CUB7 in place when sliding the
mounting clip into position.
5. Alternately tighten mounting screws.
6. Route wires through existing panel wire hole or through wire hole on base mount
and connect to the appropriate terminals on the CUB7.
7. Mount the CUB7/base mount assembly to the existing panel or frame utilizing
the four bolts and nuts provided with the base mount.
DESCRIPTION
The BMK8 base mount is designed for use with the CUB7 series products.
Wire feed to the CUB7 unit may be through the existing panel/frame or through
the hole in the BMK8 itself.
The base mount is constructed of steel with a textured black finish and
includes four mounting bolts and nuts.
MODEL BMK8 - BASE MOUNT KIT FOR CUB7
DIMENSIONS In inches (mm)
For More information on Pricing, Enclosures & Panel Mount Kits refer to
the RLC Catalog or contact your local RLC Distributor.
BMK80000CUB7 BASE MOUNT KITBMK8
PART NUMBERDESCRIPTIONMODEL NO.
ORDERING INFORMATION

L
990 www.redlion.net
INSTALLATION
1. Remove the panel latch (mounting clip) from the PAX meter unit and insert
the mounting screws (supplied with the PAX) on both sides of panel latch.
The tip of the screw should not project from the hole in the panel latch
(mounting clip).
2. The PAX meter may be wired after the unit has been mounted in the adapter
frame, in which case continue with Step 3. If pre-wiring the PAX is more
convenient, skip to the pre-wiring step at the end of this installation
procedure before returning to Step 3.
3. Slide the PAX meter through the cut out in the BMK9 and then slide
the panel latch (mounting clip) over the rear of the PAX.
4. Continue sliding the PAX meter until the bezel flange contacts
the adapter frame. The PAX panel gasket is optional.
5. Slide the panel latch (mounting clip) towards the front of the
unit until it latches firmly against the inside of the adapter
frame. Note: It is necessary to hold the PAX meter in place
when sliding the mounting clip into position.
6. Alternately tighten mounting screws through the rear access holes of the
adapter frame.
7. Apply both DIN rail feet to the rear of the adapter frame. The two latching
pins of the rail foot are positioned into the mating holes on the adapter
frame. Slight pressure applied to the center of the rail foot will snap foot into
locking position.
8. Wire PAX meter appropriately.
9. To install the complete assembly on a T style rail, angle the assembly so that
the top groove of both rail feet are located over the top lip of the rail. Push
the assembly towards the rail until it snaps into place.
10. To remove the assembly from the rail, place a screwdriver behind the
bottom groove of the foot rail and slightly pry upwards to release first rail
foot. Apply same procedure to second rail foot and remove complete
assembly.
Pre-wire PAX
2a. Route wires through the panel latch (mounting clip) and then through the
front cut out of the adapter frame from the inside to the outside. Wire PAX
meter appropriately. Continue with installation at Step 3 above.
DESCRIPTION
The BMK9 DIN rail mount kit is designed to adapt any PAX panel mount meter
to DIN rail mount requirements. Wire feed to the PAX unit may be through the top
or bottom of the adapter kit.
The DIN rail adapter frame is constructed of steel with a textured black finish
and includes two plastic DIN rail mounting feet for attachment to a top hat (T)
profile rail according to EN50022 - 35 x 7.5 and 35 x 15.
MODEL BMK9 - DIN RAIL MOUNT ADAPTER KIT FOR PAX
DIMENSIONS In inches (mm)
For More information on Pricing, Enclosures & Panel Mount Kits
refer to the RLC Catalog or contact your local RLC Distributor.
BMK90000DIN Rail PAX Base Mount KitBMK9
PART NUMBERDESCRIPTIONMODEL NO.
ORDERING INFORMATION

L
9911-717-767-6511
MODEL BMK11 – CUB5 OR MLPS DIN RAIL BASE MOUNT ADAPTER KIT
DESCRIPTION
The model BMK11 can be used to mount a CUB5 meter or a Micro Line
Power Supply (MLPS) in various applications. Need a DIN rail mounted
display? Simply add the DIN rail clips to the back of the BMK11, install your
meter and snap it on the rail. If your application requires an inexpensive power
supply, simply mount an MLPS to the BMK11 and snap it to the rail. For base
mount application, just use the appropriate mounting screws to securely fasten
the BMK11. Nothing could be easier.
DIMENSIONS In inches (mm)
BMK11 WITHOUT UNIT
BMK11 WITH MLPS
BMK11 WITH CUB5
BMK11000BMK11
PART NUMBERDESCRIPTIONMODEL NO.
ORDERING INFORMATION
CUB5 or MLPS DIN Rail Base Mount Kit

L
992 www.redlion.net
MLPS INSTALLATION
1. Using the two nuts supplied with the BMK11, affix standoffs from MLPS
hardware pack as indicated in the diagram at left.
2. Snap the MLPS over the standoffs into the BMK11 as indicated in the diagram.
3. Attach the MLPS to the standoffs using the square washers and SEMS terminal
screws included with MLPS hardware pack.
4. Assembly can be wired at this time, or after the mounting is completed.
5. For DIN RAIL mounting, insert the two plastic feet as shown in the diagram.
Angle the assembly so that the top groove of both rail feet are located over the
top lip of the rail. Rotate the assembly towards the rail until it snaps into place.
6. For Base Mount, use the holes indicated in the diagram at left, and screw or
bolt the assembly to the desired mounting surface. User is responsible for
selecting the appropriate screw or bolt to provide mounting to the desired
surface. Base mount holes in BMK11 are designed for #8 hardware.
7. To remove the MLPS from the BMK11, slide a small screwdriver between the
MLPS and the latch wall. Draw the latch away from the MLPS until
disengaged. Repeat procedure on the other side. Once latches are released
remove the MLPS from the BMK11.
CUB5 INSTALLATION
1. Remove the panel latch (mounting clip) from the indicator. Insert the
indicator into the BMK11 per diagram at right. Verify indicator is fully seated
and latches have engaged. With latches properly engaged the indicator will
not pull out of the BMK11.
2. Wire the indicator.
3. For DIN RAIL mounting, insert the two plastic feet as shown in the diagram
at right. Angle the assembly so that the top groove of both rail feet are located
over the top lip of the rail. Rotate the assembly towards the rail until it snaps
into place.
4. To remove the assembly from the rail, place a screwdriver behind one of the
rail feet and draw the rail foot away from the rail disengaging it from the rail.
Apply the same procedure to the second rail foot and remove the complete
assembly from the rail.
5. For Base Mount, use the holes indicated in the diagram at right, and screw
or bolt the assembly to the desired mounting surface. User is responsible for
selecting the appropriate screw or bolt to provide mounting to the desired
surface. Base mount holes in the BMK11 are designed for #8 hardware.
6. To remove the indicator from the BMK11, slide a small screwdriver into the
slot provided in the latch. Draw the latch away from the indicator until
disengaged. Repeat the procedure on the other side. Once the latches are
released, remove the indicator from the BMK11.

L
9931-717-767-6511
DIMENSIONS In inches (mm)
This panel mount adapter kit is used to mount 1/8 DIN instruments, vertically or horizontally into an existing 1/4 DIN panel cut-out. The kit includes two durable
steel mounting plates painted black and a neoprene gasket. The Adapter Kit, when used with a unit which has NEMA 4/IP65 specifications, will meet NEMA 4/IP65
requirements when properly installed. Red Lion Controls 1/8 DIN products include Temperature and Process Control Units (Models TCU, TSC, PCU, and PSC), and
PAX Series.
MODELS PMK5, PMK7, and PMK7A - PANEL MOUNT ADAPTER KITS
ORDERING INFORMATION
MODEL NO. DESCRIPTION PART NUMBER
PMK5 Panel Mount Adapter Kit (1/4 DIN TO 1/8 DIN) PMK50000
PMK7A
PMK7
Panel Mount Adapter Kit (1/4 DIN TO CUB)
Panel Mount Adapter Kit (1/4 DIN TO 1/16 DIN)
PMK7A000
PMK70000
MOUNTING PLATE ADAPTER PLATE
PMK5 - 1/4 DIN TO 1/8 DIN ADAPTER
INSTALLATION
TYPICAL VERTICAL MOUNT INSTALLATION
1. Remove the paper backing from the
adhesive side of the adapter gasket
(included with adapter kit) and
carefully apply the gasket to the front
of the existing panel cut-out.
2. Apply the panel gasket (provided with
the unit) to one side of the mounting
plate. Slide the mounting plate over
the unit with the gasket facing the
Bezel of the unit.
3. Insert the unit with mounting plate
into the panel cut-out from the front.
Slide the adapter plate over the rear of
the unit. The protrusion on the adapter
plate is designed to fit into the
existing 1/4 DIN panel cut-out to
properly position the unit.
4. Refer to the installation section of the
manual, supplied with the instrument,
to complete the installation.

L
994 www.redlion.net
INSTALLATION
TYPICAL INSTALLATION
1. Remove the paper backing from the
adhesive side of the adapter gasket
(included with adapter kit) and
carefully apply the gasket to the front
of the existing panel cut-out.
2. Apply the panel gasket (provided with
the unit) to one side of the mounting
plate. Slide the mounting plate over
the unit with the gasket facing the
Bezel of the unit.
3. Insert the unit with mounting plate
into the panel cut-out from the front.
Slide the adapter plate over the rear of
the unit. The protrusion on the adapter
plate is designed to fit into the
existing 1/4 DIN panel cut-out to
properly position the unit.
4. Refer to the installation section of the
manual, supplied with the instrument,
to complete the installation.
This panel mount adapter kit is used to mount 1/16 DIN instruments, into an existing 1/4 DIN panel cut-out. The kit includes two durable steel mounting plates
painted black and a neoprene gasket. The Adapter Kit, when used with a unit which has NEMA 4/IP65 specifications, will meet NEMA 4/IP65 requirements when
properly installed. Red Lion Controls 1/16 DIN products include Temperature and Process Control Units (Models T48, T16, P48, and P16), and Model C48
Counters and Timers.
DIMENSIONS In inches (mm)
MOUNTING PLATE ADAPTER PLATE
PMK7 - 1/4 DIN TO 1/16 DIN ADAPTER

L
9951-717-767-6511
INSTALLATION
TYPICAL INSTALLATION
1. Remove the paper backing from the
adhesive side of the adapter gasket
(included with adapter kit) and
carefully apply the gasket to the front
of the existing panel cut-out.
2. Apply the panel gasket (provided with
the unit) to one side of the mounting
plate. Slide the mounting plate over
the unit with the gasket facing the
Bezel of the unit.
3. Insert the unit with mounting plate
into the panel cut-out from the front.
Slide the adapter plate over the rear of
the unit. The protrusion on the adapter
plate is designed to fit into the
existing 1/4 DIN panel cut-out to
properly position the unit.
4. Refer to the installation section of the
manual, supplied with the instrument,
to complete the installation.
This panel mount adapter kit is used to mount CUB4, CUB5, DT8 and DT9 instruments, into an existing 1/4 DIN panel cut-out. The kit includes two durable steel
mounting plates painted black and a neoprene gasket. The Adapter Kit, when used with a unit which has NEMA 4/IP65 specifications, will meet NEMA 4/IP65
requirements when properly installed.
DIMENSIONS In inches (mm)
MOUNTING PLATE ADAPTER PLATE
PMK7A - 1/4 DIN TO CUB ADAPTER

L
996 www.redlion.net
The panel mount adapter kit is used to mount 1/16 DIN instruments into
existing vertical or horizontal 1/8 DIN panel cut-outs. The kit includes two
black painted durable steel mounting plates and a sponge rubber gasket. The
Adapter Kit, when used with a unit which has NEMA 4/IP65 specifications,
will meet NEMA 4/IP65 requirements when properly installed. Red Lion
Controls 1/16 DIN products include Temperature and Process Control Units
(Models T48, and P48), and the C48 units.
PANEL MOUNT ADAPTER KIT - 1/8 DIN TO 1/16 DIN
DIMENSIONS In inches (mm)
INSTALLATION
TYPICAL VERTICAL MOUNT INSTALLATION
1. Remove the paper backing from the adhesive side of the
adapter gasket (included with adapter kit) and
carefully apply the gasket to the front of the existing
panel cut-out.
2. Carefully remove the center section of the
panel gasket (provided with the unit) and
discard. Slide the panel gasket over the
rear of the unit to the back of the
bezel.
3. Slide the mounting plate
over the rear of the unit
to the back of the unit bezel.
4. Insert the unit with
mounting plate into the
panel cut-out from the front.
Slide the adapter plate over
the rear of the unit. The
protrusion on the adapter
plate is designed to fit into
the existing 1/8 DIN
panel cut-out to properly
position the unit.
5. Refer to the installation
section of the manual,
supplied with the unit, to
complete the installation.
MODEL NO. DESCRIPTION PART NUMBER
PMK6 Panel Mount Adapter Kit (1/8 DIN to 1/16 DIN) PMK60000
ORDERING INFORMATION
ADAPTER PLATEMOUNTING PLATE

L
9971-717-767-6511
The panel mount adapter kit is used to mount CUB5 units into existing 1/8
DIN panel cut-outs. The kit includes two black painted durable steel mounting
plates and a sponge rubber gasket. The Adapter Kit, when used with a unit
which has NEMA 4/IP65 specifications, will meet NEMA 4/IP65 requirements
when properly installed. Red Lion Controls CUB5 products include Counters,
Timers, Temperature, Process and Rate units.
PANEL MOUNT ADAPTER KIT - 1/8 DIN TO CUB5
DIMENSIONS In inches (mm)
INSTALLATION
TYPICAL HORIZONTAL MOUNT INSTALLATION
1. Remove the paper backing from the adhesive side of the
adapter gasket (included with adapter kit) and carefully
apply the gasket to the front of the existing panel cut-
out.
2. Carefully remove the center section of the panel
gasket (provided with the unit) and discard.
Slide the panel gasket over the rear of the
unit to the back of the bezel.
3. Slide the mounting plate over the
rear of the unit to the back of the
unit bezel.
4. Insert the unit with mounting plate
into the panel cut-out from the
front. Slide the adapter plate over
the rear of the unit. The
protrusion on the adapter plate is
designed to fit into the existing
1/8 DIN panel cut-out to properly
position the unit.
5. Refer to the installation section of
the manual, supplied with the unit,
to complete the installation.
ORDERING INFORMATION
MOUNTING PLATE ADAPTER PLATE
MODEL NO. DESCRIPTION PART NUMBER
PMK6A Panel Mount Adapter Kit (1/8 DIN to CUB5) PMK6A000

L
998 www.redlion.net
PMK8 DIMENSIONS In inches (mm)
The PMK8 panel mount adapter kit is used to mount a PAX meter into an
existing GEMINI panel cut-out. The kit includes two durable steel mounting
plates painted black and a neoprene gasket. The Adapter Kit, when used with a
meter which has NEMA 4/IP65 specifications, will meet NEMA 4/IP65
requirements when properly installed.
MODEL PMK8 - PANEL MOUNT ADAPTER KIT FOR PAX TO GEMINI CUT-OUT
ORDERING INFORMATION
MODEL NO. DESCRIPTION PART NUMBER
PMK8 Panel Mount Adapter Kit (PAX to Gemini) PMK80000
MOUNTING PLATE ADAPTER PLATE
PMK8 INSTALLATION
1. Apply the panel gasket (provided with the meter) over the PAX meter.
2. Insert the PAX meter through the mounting plate.
3. Apply the panel gasket (provided with the adapter kit) over the
PAX meter behind the mounting plate.
4. Insert the PAX meter with mounting plate and gaskets into the
front of the existing Gemini hole cut-out. Slide the adapter
plate over the rear of the PAX meter.
5. Slide the panel latch (provided with the meter) over the
rear of the PAX meter and tighten the screws.

L
9991-717-767-6511
The Gemini Series panel adapter kit permits the mounting of the Gemini unit
to an existing 68 mm x 138 mm DIN standard panel cut-out. The kit consists of
two metal adapter plates coated with a durable flat black polyurethane finish,
and a neoprene gasket, which provides a sealed front panel that meets NEMA
4/IP65 specifications when properly installed.
DIMENSIONS In inches (mm)
Note:
An overall panel area
of 3” x 6” is required
for proper mounting.
INSTALLATION
1. Remove the backing from the adhesive side of the adapter gasket (included
with adapter kit) and carfully stick the gasket to the front of the existing
panel cut-out.
2. Apply the standard panel mount gasket (provided with the Gemini unit) to
one of the adapter plates and slide the plate over the Gemini unit. (Gasket
side must be facing the bezel.)
3. Insert the Gemini unit into the panel cut-out from the front and slide the
remaining adapter plate over the Gemini unit from the rear.
4. Install the two mounting clips (provided with the Gemini unit) as per the
instructions in the Gemini manual. Install the screws into the mounting
clips and tighten them evenly to apply uniform compression and to provide
a water-tight seal.
CAUTION: Only minimum pressure is required to seal the panel. Do NOT
overtighten the mounting screws.
GEMINI SERIES PANEL ADAPTER KIT FOR DIN PANEL CUT-OUTS
MODEL NO. DESCRIPTION PART NUMBER
3-PIECE KIT permits mounting to existing
PMKG1 2.67” x 5.43” (68 mm x 138 mm) Panel cut-out, PMKG1000
O.A. DIM. 3” x 6” (76.2 mm x 152.4 mm)
ORDERING INFORMATION

L
1000 www.redlion.net
The 1/8 DIN panel adapter kit permits the mounting of the PAX and Apollo
units into an existing 1.8" (45.7 mm) x 3.88" (98.5 mm) (DT3A, DT3D, SCT, &
SCP) panel cut-out. The kit consists of two metal adapter plates coated with a
durable flat black polyurethane finish, and a neoprene gasket, which provides a
sealed front panel that meets NEMA 4/IP65 specifications when properly
installed.
DIMENSIONS In Inches (mm)
NOTE:
An overall panel area
of 2.25" (57.1 mm) x
4.63" (117.6 mm) is
required for proper
mounting.
INSTALLATION
1. Remove the backing from the adhesive side of the adapter gasket (included
with adapter kit) and carefully stick the gasket to the front of the existing
panel cut-out.
2. Place the standard panel mount gasket (provided with the unit) over the unit.
Then slide one of the plates over the unit. If the gasket has adhesive, apply
the gasket to the plate, then slide the plate over the unit. (Gasket must be
facing the bezel.)
3. Insert the unit into the panel cut-out from the front and slide the remaining
adapter plate over the unit from the rear.
4. Install the mounting clip(s) as per the unit instructions. Tighten the
mounting screws evenly to apply uniform compression and to provide a
water-tight seal.
CAUTION: Only minimum pressure is required to seal the panel. Do NOT
overtighten the mounting screws.
1/8 DIN PANEL ADAPTER KIT
FOR DT3A, DT3D, SCT, & SCP PANEL CUT-OUTS
ORDERING INFORMATION
MODEL NO. DESCRIPTION PART NUMBER
PMKA1
3-PIECE KIT permits mounting to existing
1.8" x 3.88" (45.7 x98.4 mm) Panel cut-out, O.A.
DIM. 2.25" x 4.63" (57.1 x 117.6 mm)
PMKA1000

L
10011-717-767-6511
PMKCC1 & PMKCC2
These panelmount kits adapt the CUB Controller to either a 50 mm x 50 mm
or a 68 mm x 68 mm panel cut-out. The kit consists of two metal panel adaptors,
one neoprene gasket and 2 3-48 x 1/2” screws. The adapter plates and gasket are
pinched between the front bezel of the counter and the mounting clips (provided
with the controller accessory bag). The 1/2” long screws may be necessary for
thicker panel installations.
Note: If room permits, install signal connector after unit is mounted. If there is
not enough room, pull the wires through before installing as described below:
1. Pull signal connector through the following items in order:
a) One panel adapter plate.
b) Through existing panel opening.
2. Slide the following items onto the counter.
a) Panel gasket
b) Adapter plate
c) Adapter gasket
3. Install connector in the Cub Controller. Ensure connector is in proper
orientation i.e. lockslots visible when viewed from below the case.
4. Slide counter through panel cut-out from the front, and center in the panel
opening.
5. Install mounting clips (one on either side) with the screws provided. Tighten
the screws moderately to “pinch” the gaskets and panels between the front
bezel and the mounting clips. (Mounting clips are provided in accessory
bag.)
INSTALLATION FOR CUB CONTROLLER PANELMOUNT KITS
PMKCC1 PMKCC2 PMKCC3
Three panelmount kits for the CUB Controller are available to replace most existing miniature
presettable counters on the market today. Kits come complete with adapter plates coated with a
durable flat black polyurethane finish, mounting hardware, and gaskets to provide a complete sealed
unit that meets NEMA 4/IP65 specifications when properly installed.
DIMENSIONS In inches (mm)
PMKCC1 PMKCC2 PMKCC3

L
1002 www.redlion.net
PMKCC3
For mounting proceed as follows:
1. Slide panel gasket over back of counter. (Gasket is supplied in accessory bag
with counter.)
2. Slide counter onto adapter plate.
3. Slide adapter gasket onto counter.
4. Attach counter to adapter plate with two mounting clips and screws. (Both
mounting clips are supplied in accessory bag with counter.)
5. Install connector in the Cub Controller. Ensure connector is in proper
orientation i.e. lockslots visible when viewed from below the case.
6. Place complete assembly over existing cut-out, lining up the adapter plate
mounting holes with existing holes.
7. Use two mounting screws and nuts provided with Panel Adapter Kit to
secure panel to existing cut-out.
MODEL NO. DESCRIPTION PART NUMBER
3-PIECE KIT permits mounting in existing
PMKCC1 1.97” X 1.97” (50 mm x 50 mm) panel cut-outs PMKCC100
O.A. 2.27” x 2.27” (57.6 mm x 57.6 mm)
3-PIECE KIT permits mounting in existing
PMKCC2 2.68” x 2.68” (68 mm x 75 mm) socket box panel cut-outs, PMKCC200
(72 mm x 72 mm DIN bezel opening)
O.A. 3” x 3” (76 mm x 76 mm)
2-PIECE KIT permits mounting for existing 2.36” x 2.95”
(60 mm x 75 mm) socket box panel cut-outs
PMKCC3 O.A. 2.36” x 2.96” (60 mm x 75 mm) PMKCC300
Hole Centers 2.48” (63 mm
ORDERING INFORMATION

The Trusted Source for
Innovative Control
Solutions
1-717-767-6511
SENSOR WIRING
GUIDE
M
1003

M
1004 www.redlion.net
SENSOR
MODEL
LMPEC
MP25TA
MP37TA
MP37CA
MP62TA
MP75TX
LSC
RPGC
OLD
MODEL
OUTPUT
CONNECTIONS
APLR/APLRI/
APLPT
C48C
CUB1, CUB2
CUB2LQ
CUB3
LMPCC
ASTC, LMPC,
ZFG, ZCG,
HESS, PSAH
PSA6B
PSA7B
PSA8B
PSAFP
PSAC
CUB2LU
PSA1B
PSA2B
RED
(+ V)
3
(DC OUT)
SWITCH
SETTINGS
BLK
(-)
4
(COMM.)
WHT
(Ch A)
5
(SIG. IN)
MAG. PKUP.
LOGIC
NPN OC
BLK
or
BRN
(+ V)
3
(DC OUT)
SWITCH
SETTINGS
BLUE
(Ch A)
1.5 K
5
(SIG. IN)
4
(COMM.)
MAG. PKUP.
LOGIC
NPN OC
BRN
(+ V)
3
(DC OUT)
SWITCH
SETTINGS
BLUE
(-)
4
(COMM.)
BLK
(Ch A)
5
(SIG. IN)
MAG. PKUP.
LOGIC
NPN OC
BLUE
or
WHT
5
(SIG. IN)
SWITCH
SETTINGS
BLK 4
(COMM.)
MAG. PKUP.
LOGIC
NPN OC
A
(+ V)
3
(DC OUT)
SWITCH
SETTINGS
B
(-)
4
(COMM.)
C
(Ch A
5
(SIG. IN)
MAG. PKUP.
LOGIC
NPN OC
A
(+ V)
3
(DC OUT)
SWITCH
SETTINGS
B
(-)
4
(COMM.)
C
(Ch A)
5
(SIG. IN)
MAG. PKUP.
LOGIC
NPN OC
A
(+ V)
10
(DC OUT)
B
(-)
9
(COMM.)
C
(Ch A)
7
(INPUT A)
SWITCH
SETTINGS
SRC
SNK
LO FRQ
HI FRQ
LO BIAS
HI BIAS
RED
(+ V)
10
(DC OUT)
BLK
(-)
9
(COMM.)
WHT
(Ch A)
7
(INPUT A)
SWITCH
SETTINGS
SRC
SNK
LO FRQ
HI FRQ
LO BIAS
HI BIAS
10
(DC OUT)
BLK
or
BRN
(+ V)
BLUE
(Ch A)
7
(INPUT A)
SWITCH
SETTINGS
SRC
SNK
LO FRQ
HI FRQ
LO BIAS
HI BIAS
NOT
APPLICABLE
BRN
(+ V)
10
(DC OUT)
BLUE
(-)
9
(COMM.)
BLK
(Ch A)
7
(INPUT A)
SWITCH
SETTINGS
SRC
SNK
LO FRQ
HI FRQ
LO BIAS
HI BIAS
C
(+ V)
10
(DC OUT)
B
(-)
9
(COMM.)
A
(Ch A)
7
(INPUT A)
SWITCH
SETTINGS
SRC
SNK
LO FRQ
HI FRQ
LO BIAS
HI BIAS
KEY
BLACK
(Ch A)
BLUE
(-) or
(COMM)
BROWN
(+ V)
WHITE
(Ch A)
BLACK
(-) or
(COMM)
RED
(+ V)
BLUE
(Ch A)
BLACK
OR
BROWN
(+ V)
BLACK
WHITE
OR
BLUE
KEY
B (-) or (COMM )
A (+ V)
C (Ch A)
RED
BLACK
WHITE
B (-) or (COMM )
A (+ V)
C (Ch A)
RED
BLACK
WHITE
NOT
APPLICABLE
NOT
APPLICABLE
NOT
APPLICABLE
NOT
APPLICABLE
NOT
APPLICABLE
NOT
APPLICABLE
NOT
APPLICABLE
NOT
APPLICABLE
NOT
APPLICABLE
NOT
APPLICABLE
NOT
APPLICABLE
NOT
APPLICABLE
NOT
APPLICABLE
NOT
APPLICABLE
NOT
APPLICABLE
RED
(+ V)
PSMA
BLK *
(COMM)
BLK
(-) WHT *
(H.S. IN)
12345
WHT
(Ch A)
BRN
(+ V)
PSMA
BLK
(Ch A) BLK *
(COMM)
BLUE
(-) WHT *
(H.S. IN)
12345
A
(+ V)
PSMA
C (Ch A) BLK *
(COMM)
B (-)
WHT *
(H.S. IN)
12345
BRN
(+ V)
(+)
APS
BLK *
(COMM)
BLUE (-)
BLK
(Ch A)
WHT *
(CNT.)
1(-)
2
BRN
(+ V)
(+)
APS
BLK *
(COMM)
BLUE (-)
BLK
(Ch A)
WHT *
(CNT.)
1(-)
2
RED (+ V)
(+)
APS
BLK *
(COMM.)
BLK (COMM)
WHT
(Ch A)
WHT *
(CNT.)
1(-)
2
RED (+ V)
(+)
APS
BLK *
(COMM.)
BLK (COMM)
WHT
(Ch A)
WHT *
(CNT.)
1(-)
2
A (+ V)
B (-)
(+)
APS
BLK *
(COMM)
C
(Ch A)
WHT *
(CNT.)
1(-)
2
* Designates wires from the listed counter.
CUB7
NOT
APPLICABLE
NOT
APPLICABLE
NOT
APPLICABLE
RED
(+ V)
PSMA
1
(COMM)
BLK
(-) 6
(H.S. IN)
12345
WHT
(Ch A)
BRN
(+ V)
PSMA
BLK
(Ch A) 1
(COMM)
BLUE
(-) 6
(H.S. IN)
12345
A
(+ V)
PSMA
C (Ch A) 1
(COMM)
B (-)
6
(H.S. IN)
12345
A (+ V)
(+)
APS
BLK *
(COMM.)
B (-)
C
(Ch A)
WHT *
(CNT.)
1(-)
2

M
10051-717-767-6511
SENSOR
MODEL
PRMDC
RCMDC
RRMDC
ZBG
ZBH
(M12 Connector)
ZDH
ZLZ
ZNH
ZUK
OLD
MODEL
OUTPUT
CONNECTIONS
APLR/APLRI/
APLPT
C48C
CUB1, CUB2
CUB2LQ
CUB3
PRDC
RCDC
RRDC
ZCH, ZFH, ZGH,
ZMD, ZOD, ZOH,
ZPJ, ZRJ, ZRL, ZSD,
RPGD
CUB2LU
WHITE
(Ch A)
GREEN (Ch B)
BLACK (-) or
(COMM)
RED (+ V)
BLACK
(NPN CLOSED)
BLUE (-)
or (COMM)
BROWN (+ V)
KEY
D (Ch B)
A (+ V)
B (-) or (COMM)
C (Ch A)
F
EG
RED
(+ V)
GREEN
(Ch B)
WHITE
(Ch A)
BLACK
(-) or
(COMM)
8
3
4
56
7
1
2
RED
BLACK
WHITE
GREEN
ARJ, LSM, LSQ,
RPGO, RPGQ,
RPGB
RPGH
BLACK
(PNP OPEN)
RED
(+ V)
10
(DC OUT)
BLK
(-)
9
(COMM)
WHT
(Ch A)
7
(INPUT A)
GRN
(Ch B)
8
(INPUT B)
SWITCH
SETTINGS
SRC
SNK
LO FRQ
HI FRQ
LO BIAS
HI BIAS
A
(+ V) 10
(DC OUT)
B
(-) 9
(COMM)
C
(Ch A) 7
(INPUT A)
D
(Ch B) 8
(INPUT B)
SWITCH
SETTINGS
SRC
SNK
LO FRQ
HI FRQ
LO BIAS
HI BIAS
1
(+ V) 10
(DC OUT)
2
(-) 9
(COMM)
3
(Ch A) 7
(INPUT A)
4
(Ch B) 8
(INPUT B)
SWITCH
SETTINGS
SRC
SNK
LO FRQ
HI FRQ
LO BIAS
HI BIAS
BRN
(+ V) 10
(DC OUT)
BLUE
(-)
9
(COMM)
WHT 7
(INPUT A)
SWITCH
SETTINGS
SRC
SNK
LO FRQ
HI FRQ
LO BIAS
HI BIAS
BRN
(+ V) 10
(DC OUT)
BLUE
(-)
9
(COMM)
WHT 7
(INPUT A)
SWITCH
SETTINGS
SRC
SNK
LO FRQ
HI FRQ
LO BIAS
HI BIAS
RED
(+ V)
PSMA
BLK *
(COMM)
BLK
(-) WHT *
(H.S. IN)
12345
WHT
(Ch A)
BRN
(+ V)
PSMA
BLK *
(COMM.)
BLUE
(-) WHT *
(H.S. IN)
12345
WHT
BRN
(+ V)
PSMA
BLK *
(COMM.)
BLUE
(-) WHT *
(H.S. IN)
12345
WHT
A
(+ V)
PSMA
C (Ch A) BLK *
(COMM)
B (-)
WHT *
(H.S. IN)
12345
1
(+ V)
PSMA
3 (Ch A) BLK *
(COMM)
2 (-)
WHT *
(H.S. IN)
12345
1 (+ V)
(+)
APS
BLK *
(COMM)
2 (-)
3
(Ch A)
4
(Ch B) GRN *
(QUAD.)
WHT *
(CNT.)
1(-)
2
1K 1K
A (+ V)
(+)
APS
BLK *
(COMM)
B (-)
C
(Ch A)
D
(Ch B) GRN *
(QUAD.)
WHT *
(CNT.)
1(-)
2
1K 1K
NOT
APPLICABLE
NOT
APPLICABLE
NOT
APPLICABLE
NOT
APPLICABLE
RED (+ V)
(+)
APS
BLK *
(COMM.)
BLK (COMM)
WHT
(Ch A)
WHT *
(CNT.)
1(-)
2
RED (+ V)
(+)
APS
BLK *
(COMM.)
BLK (COMM)
WHT
(Ch A)
WHT *
(CNT.)
1(-)
2
RED (+ V)
(+)
APS
BLK *
(COMM)
BLK (-)
WHT (Ch A)
GRN (Ch B) GRN *
(QUAD.)
WHT *
(CNT.)
1(-)
2
1 (+ V)
2 (-)
1K
(+)
APS
BLK *
(COMM)
3 (Ch A) WHT *
(CNT.)
1(-)
2
A (+ V)
B (-)
1K
(+)
APS
BLK *
(COMM)
C (Ch A) WHT *
(CNT.)
1(-)
2
BRN
(+ V)
(+)
APS
BLK *
(COMM.)
BLUE (-)
WHT WHT *
(CNT.)
1(-)
2
BRN
(+ V)
(+)
APS
BLK *
(COMM.)
BLUE (-)
WHT WHT *
(CNT.)
1(-)
2
BRN
(+ V)
(+)
APS
BLK *
(COMM.)
BLUE (-)
WHT WHT *
(CNT.)
1(-)
2
BRN
(+ V)
(+)
APS
BLK *
(COMM.)
BLUE (-)
WHT WHT *
(CNT.)
1(-)
2
3
(DC OUT)
SWITCH
SETTINGS
4
(COMM.)
5
(SIG. IN)
MAG. PKUP.
LOGIC
NPN OC
1
(+ V)
2
(-)
3
(Ch A)
3
(DC OUT)
SWITCH
SETTINGS
4
(COMM.)
5
(SIG. IN)
MAG. PKUP.
LOGIC
NPN OC
A
(+ V)
B
(-)
C
(Ch A)
BRN
(+ V)
3
(DC OUT)
SWITCH
SETTINGS
BLUE
(-)
4
(COMM)
WHT 5
(SIG. IN)
MAG. PKUP.
LOGIC
NPN OC
BRN
(+ V)
3
(DC OUT)
SWITCH
SETTINGS
BLUE
(-)
4
(COMM)
WHT 5
(SIG. IN)
MAG. PKUP.
LOGIC
NPN OC
RED
(+ V)
3
(DC OUT)
SWITCH
SETTINGS
BLK
(-)
4
(COMM.)
WHT
(Ch A)
5
(SIG. IN)
MAG. PKUP.
LOGIC
NPN OC
ZBG
ZBH
ZHG
KEY
D (Ch B)
A (+ V)
B (-) or (COMM)
C (Ch A)
F
E
RED
BLACK
WHITE
GREEN
Ch B
Ch A
COMM
+ V
4
3
2
1
ZHG
ZBG and ZBH
LE, RPGN RPGB
WHITE
(NPN OPEN)
BLUE (-)
or (COMM)
BROWN (+ V)
WHITE
(NPN OPEN)
* Designates wires from the listed counter.
CUB7
RED
(+ V)
PSMA
1
(COMM)
BLK
(-) 6
(H.S. IN)
12345
WHT
(Ch A)
BRN
(+ V)
PSMA
1
(COMM.)
BLUE
(-) 6
(H.S. IN)
12345
WHT
BRN
(+ V)
PSMA
1
(COMM.)
BLUE
(-) 6
(H.S. IN)
12345
WHT
A
(+ V)
PSMA
C (Ch A) 1
(COMM)
B (-)
6
(H.S. IN)
12345
1
(+ V)
PSMA
3 (Ch A) 1
(COMM)
2 (-)
6
(H.S. IN)
12345
RED
(+ V)
10
(DC OUT)
BLK
(-)
9
(COMM)
WHT
(Ch A)
7
(INPUT A)
GRN
(Ch B)
8
(INPUT B)
SWITCH
SETTINGS
SRC
SNK
LO FRQ
HI FRQ
LO BIAS
HI BIAS
RED
(+ V)
PSMA
BLK *
(COMM)
BLK
(-) WHT *
(H.S. IN)
12345
WHT
(Ch A)
RED (+ V)
(+)
APS
BLK *
(COMM.)
BLK (COMM)
WHT
(Ch A)
WHT *
(CNT.)
1(-)
2
RED (+ V)
(+)
APS
BLK *
(COMM.)
BLK (COMM)
WHT
(Ch A)
WHT *
(CNT.)
1(-)
2
RED (+ V)
(+)
APS
BLK *
(COMM)
BLK (-)
WHT (Ch A)
GRN (Ch B) GRN *
(QUAD.)
WHT *
(CNT.)
1(-)
2
RED
(+ V)
3
(DC OUT)
SWITCH
SETTINGS
BLK
(-)
4
(COMM.)
WHT
(Ch A)
5
(SIG. IN)
MAG. PKUP.
LOGIC
NPN OC
RED
(+ V)
PSMA
1
(COMM)
BLK
(-) 6
(H.S. IN)
12345
WHT
(Ch A)

M
1006 www.redlion.net
SENSOR
MODEL
LMPEC
MP25TA
MP37TA
MP37CA
MP62TA
MP75TX
LSC
RPGC
OLD
MODEL
OUTPUT
CONNECTIONS
CUB4
CUB5
(Pre 2004)
CUB5B
CUB5R
CUB5T
DITAK 7
DITAK 8
GEMINI 2, 3 or 4
LMPCC
ASTC, LMPC,
ZFG, ZCG,
HESS, PSAH
PSA6B
PSA7B
PSA8B
PSAFP
PSAC
KEY
BLUE
(Ch A)
BLACK
OR
BROWN
(+ V)
BLACK
WHITE
OR
BLUE
KEY
B (-) or (COMM )
A (+ V)
C (Ch A)
RED
BLACK
WHITE
PSA1B
PSA2B
B (-) or (COMM )
A (+ V)
C (Ch A)
RED
BLACK
WHITE
GEMINI 1
NOT
APPLICABLE
NOT
APPLICABLE
NOT
APPLICABLE
USE ASTC IN-LINE
AMPLIFIER
NOT
APPLICABLE
NOT
APPLICABLE
10 K ohm
V+ 2
H.S. CNT 5
1COM
BLK
(COMM)
RED
(+ V)
WHT
(Ch A)
V+
INPUT A
COMM.
BLK
(COMM)
RED
(+ V)
WHT
(Ch A)
V+
INPUT A
COMM.
B
(COMM)
A
(+ V)
C
(Ch A)
10 K ohm
B
(COMM)
A
(+ V)
C
(Ch A)
V+
INPUT A
COMM.
BLK
(Ch A)
BLUE
(COMM)
BRN
(+ V)
10 K ohm
BLUE
(COMM)
BRN
(+ V)
BLK
(Ch A)
NOT
APPLICABLE
Sensor is not applicable for INP B
BLK
(COMM) RED
(+ V)
WHT
(Ch A)
PWR
COMM
INP COMM
+ VDC
USR
INP B
INP A
Sensor also works for INP B
1
ON
SWITCH
SETTINGS
234
BLK or BRN
(+ V)
BLUE (Ch A)
PWR
COMM
INP COMM
+ VDC
USR
INP B
INP A
1
ON
SWITCH
SETTINGS
234
BLUE
(COMM) BRN
(+ V)
BLK
(Ch A)
PWR
COMM
INP COMM
+ VDC
USR
INP B
INP A
1
ON
SWITCH
SETTINGS
234
BLK
(COMM)
BLUE or WHT
(Ch A)
PWR
COMM
INP COMM
+ VDC
USR
INP B
INP A
1
ON
SWITCH
SETTINGS
234
B
(COMM) A
(+ V)
C
(Ch A)
PWR
COMM
INP COMM
+ VDC
USR
INP B
INP A
1
ON
SWITCH
SETTINGS
234
B
(COMM) A
(+ V)
C
(Ch A)
PWR
COMM
INP COMM
+ VDC
USR
INP B
INP A
1
ON
SWITCH
SETTINGS
234
2.2 K ohm
WHITE
(Ch A)
BLACK
(-) or
(COMM)
RED
(+ V)
BLACK
(Ch A)
BLUE
(-) or
(COMM)
BROWN
(+ V)
Sensor is not applicable for INP B Sensor is not applicable for INP B Sensor also works for INP B
BLK
(COMM) RED
(+ V)
WHT
(Ch A)
PWR
COMM
INP COMM
+ VDC
USR
INP B
INP A
1
ON
SWITCH
SETTINGS
234
Sensor also works for INP B
BLUE
(COMM) BRN
(+ V)
BLK
(Ch A)
PWR
COMM
INP COMM
+ VDC
USR
INP B
INP A
1
ON
SWITCH
SETTINGS
234
Sensor also works for INP B
HESS or PSAH sensors only.
Also applicable for INP B
NOT
APPLICABLE
NOT
APPLICABLE
NOT
APPLICABLE
4.8K
DITAK w/MLPS
WHT
(Ch A) RED
(+V)
BLK
(COMM) 4.8K
DITAK w/MLPS
BLK
(Ch A) BRN
(+V)
BLUE
(COMM)
DITAK w/MLPS
C
(Ch A)
A
(+V)
B
(COMM)
WHT
or
BLUE
BLK
NOT
APPLICABLE
4.8K
V+ 2
DITAK w/MLPS
1 GND
3 INP
C
(Ch A) A
(+V)
B
(COMM)
RED
(+ V)
4
(DC OUT)
BLK
(-)
5
(COMM.)
WHT
(Ch A)
7
(INPUT A)
SWITCH
SETTINGS
LOGIC
MAG
SRC
SNK
LO FRQ
HI FRQ
LO BIAS
HI BIAS
A
(+ V)
4
(DC OUT)
B
(-)
5
(COMM.)
C
(Ch A)
7
(INPUT A)
SWITCH
SETTINGS
LOGIC
MAG
SRC
SNK
LO FRQ
HI FRQ
LO BIAS
HI BIAS
WHT
or
BLU
6
(MAG. PKUP)
BLK 5
(COMM.)
SWITCH
SETTINGS
LOGIC
MAG
SRC
SNK
LO FRQ
HI FRQ
LO BIAS
HI BIAS
BLK
or
BRN
4
(DC OUT)
BLUE 7
(INPUT A)
SWITCH
SETTINGS
LOGIC
MAG
SRC
SNK
LO FRQ
HI FRQ
LO BIAS
HI BIAS
BRN
(+ V)
4
(DC OUT)
BLU
(-)
5
(COMM.)
BLK
(Ch A)
7
(INPUT A)
SWITCH
SETTINGS
LOGIC
MAG
SRC
SNK
LO FRQ
HI FRQ
LO BIAS
HI BIAS
A
(+ V)
4
(DC OUT)
B
(-)
5
(COMM.)
C
(Ch A)
7
(INPUT A)
SWITCH
SETTINGS
LOGIC
MAG
SRC
SNK
LO FRQ
HI FRQ
LO BIAS
HI BIAS
A
(+ V)
4
(DC OUT)
TBA
B
(-)
5
(COMM.)
TBC
C
(Ch A)
3
(INPUT A)
TBC
SWITCH
SETTINGS
LOGIC MAG
SRC SNK
LO FRQ HI FRQ
LO BIAS HI BIAS
A
(+ V)
4
(DC OUT)
TBA
B
(-)
5
(COMM.)
TBC
C
(Ch A)
3
(INPUT A)
TBC
SWITCH
SETTINGS
LOGIC MAG
SRC SNK
LO FRQ HI FRQ
LO BIAS HI BIAS
WHT
or
BLU
4
(MAG.PKUP)
TBC
BLK 5
(COMM.)
TBC
SWITCH
SETTINGS
LOGIC MAG
SRC SNK
LO FRQ HI FRQ
LO BIAS HI BIAS
BLK
or
BRN
4
(DC OUT)
TBA
BLUE 3
(INPUT A)
TBC
SWITCH
SETTINGS
LOGIC MAG
SRC SNK
LO FRQ HI FRQ
LO BIAS HI BIAS
RED
(+ V)
4
(DC OUT)
TBA
BLK
(-)
5
(COMM.)
TBC
WHT
(Ch A)
3
(INPUT A)
TBC
SWITCH
SETTINGS
LOGIC MAG
SRC SNK
LO FRQ HI FRQ
LO BIAS HI BIAS
BRN
(+ V)
4
(DC OUT)
TBA
BLUE
(-)
5
(COMM.)
TBC
BLK
(Ch A)
3
(INPUT A)
TBC
SWITCH
SETTINGS
LOGIC MAG
SRC SNK
LO FRQ HI FRQ
LO BIAS HI BIAS
V+2
H.S. CNT 5
1 COM V+ 2
H.S. CNT 5
1 COM
V+ 2
1 GND
3 INP
1 GND
3 INP
V+ 2
1 GND
3 INP
V+ 2
1 GND
3 INP

M
10071-717-767-6511
SENSOR
MODEL
PRMDC
RCMDC
RRMDC
ZBG
ZBH
(M12 Connector)
ZDH
ZLZ
ZNH
ZUK
OLD
MODEL
OUTPUT
CONNECTIONS
CUB4
CUB5
(PRE 2004)
PRDC
RCDC
RRDC
ZBG
ZBH
ZHG
RED
(+ V)
GREEN
(Ch B)
WHITE
(Ch A)
8
3
4
56
7
1
2
RPGB
RPGH
KEY
D (Ch B)
A (+ V)
B (-) or (COMM)
C (Ch A)
F
E
RED
BLACK
WHITE
GREEN
Ch B
Ch A
COMM
+ V
4
3
2
1
ZHG
ZBG and ZBH
* Designates wires from the listed counter.
ARJ, LSM, LSQ,
RPGO, RPGQ,
ZCH, ZFH, ZGH,
ZMD, ZOD, ZOH,
ZPJ, ZRJ, ZRL, ZSD,
RPGD
LE, RPGN RPGB
WHITE
(Ch A)
GREEN (Ch B)
BLACK (-) or
(COMM)
RED (+ V) KEY
D (Ch B)
A (+ V)
B (-) or (COMM)
C (Ch A)
F
EG
RED
BLACK
WHITE
GREEN
BLACK
(-) or
(COMM)
BLACK
(NPN CLOSED)
BLUE (-)
or (COMM)
BROWN (+ V)
BLACK
(PNP OPEN)
WHITE
(NPN OPEN)
BLUE (-)
or (COMM)
BROWN (+ V)
WHITE
(NPN OPEN)
CUB5B
CUB5R
CUB5T
DITAK 7
DITAK 8
GEMINI 2, 3 or 4 GEMINI 1
10 K ohm
V+ 2
H.S. CNT 5
1 COM
BLK
(COMM)
RED
(+ V)
WHT
(Ch A)
10 K ohm
B
(COMM)
A
(+ V)
C
(Ch A)
10 K ohm
BLUE
(COMM)
BRN
(+ V) WHT
10 K ohm
BLUE
(COMM)
BRN
(+ V) WHT
B
(COMM)
A
(+ V)
C
(Ch A) 2
(COMM)
1
(+ V)
3
(Ch A)
V+
A
COMM.
BLK
(COMM)
RED
(+ V)
WHT
(Ch A)
B
GRN
(Ch B)
V+
A
COMM.
B
(COMM)
A
(+ V)
C
(Ch A)
B
D
(Ch B)
V+
A
COMM.
B
(COMM)
A
(+ V)
C
(Ch A)
B
D
(Ch B)
V+
A
COMM.
2
(COMM)
1
(+ V)
3
(Ch A)
B
4
(Ch B)
V+
INPUT A
COMM.
WHT
BLUE
(COMM)
BRN
(+ V)
V+
INPUT A
COMM.
WHT
BLUE
(COMM)
BRN
(+ V)
BLK
(COMM) RED
(+ V)
WHT
(Ch A)
PWR
COMM
INP COMM
+ VDC
USR
INP B
INP A
1
ON
SWITCH
SETTINGS
234
GRN
(Ch B)
B
(COMM) A
(+ V)
C
(Ch A)
PWR
COMM
INP COMM
+ VDC
USR
INP B
INP A
1
ON
SWITCH
SETTINGS
234
D
(Ch B)
B
(COMM) A
(+ V)
C
(Ch A)
PWR
COMM
INP COMM
+ VDC
USR
INP B
INP A
1
ON
SWITCH
SETTINGS
234
Sensor also works for INP B
D
(Ch B)
2
(COMM) 1
(+ V)
3
(Ch A)
PWR
COMM
INP COMM
+ VDC
USR
INP B
INP A
1
ON
SWITCH
SETTINGS
234
4
(Ch B)
BLUE
(COMM) BRN
(+ V)
WHT
PWR
COMM
INP COMM
+ VDC
USR
INP B
INP A
1
ON
SWITCH
SETTINGS
234
Sensor also works for INP B
BLUE
(COMM) BRN
(+ V)
WHT
PWR
COMM
INP COMM
+ VDC
USR
INP B
INP A
1
ON
SWITCH
SETTINGS
234
Sensor also works for INP B
BLUE
(COMM) BRN
(+ V)
WHT
PWR
COMM
INP COMM
+ VDC
USR
INP B
INP A
1
ON
SWITCH
SETTINGS
234
NOT
APPLICABLE
NOT
APPLICABLE
NOT
APPLICABLE
NOT
APPLICABLE
Sensor also works for INP B
BLUE
(COMM) BRN
(+ V)
WHT
PWR
COMM
INP COMM
+ VDC
USR
INP B
INP A
1
ON
SWITCH
SETTINGS
234
4.8K
V+ 2
DITAK w/MLPS
1 GND
3 INP
WHT
(Ch A) RED
(+V)
BLK
(COMM)
4.8K
V+ 2
DITAK w/MLPS
1 GND
3 INP
C
(Ch A) A
(+V)
B
(COMM)
DITAK w/MLPS
C
(Ch A) A
(+V)
B
(COMM)
DITAK w/MLPS
3
(Ch A) 1
(+V)
2
(COMM)
4.8K
DITAK w/MLPS
WHT BRN
(+V)
BLUE
(COMM)
4.8K
DITAK w/MLPS
WHT BRN
(+V)
BLUE
(COMM)
RED 4
(DC OUT)
BLK 5
(COMM.)
7
(INPUT A)
WHT
GRN 8
(INPUT B)
SWITCH
SETTINGS
LOGIC
MAG
SRC
SNK
LO FRQ
HI FRQ
LO BIAS
HI BIAS
A4
(DC OUT)
BB 5
(COMM.)
7
(INPUT A)
C
D8
(INPUT B)
SWITCH
SETTINGS
LOGIC
MAG
SRC
SNK
LO FRQ
HI FRQ
LO BIAS
HI BIAS
A
(+ V)
4
(DCOUT)
B
(COMM)
5
(COMM.)
7
(INPUTA)
C
Ch A)
D
(ChB)
8
(INPUTB)
SWITCH
SETTINGS
LOGIC
MAG
SRC
SNK
LO FRQ
HI FRQ
LO BIAS
HI BIAS
1
(+ V)
4
(DCOUT)
2
(COMM)
5
(COMM.)
7
(INPUTA)
3
Ch A)
4
(Ch B)
8
(INPUTB)
SWITCH
SETTINGS
LOGIC
MAG
SRC
SNK
LO FRQ
HI FRQ
LO BIAS
HI BIAS
BRN
(+ V)
4
(DC OUT)
BLUE
(-)
5
(COMM.)
WHT 7
(INPUT A)
SWITCH
SETTINGS
LOGIC
MAG
SRC
SNK
LO FRQ
HI FRQ
LO BIAS
HI BIAS
BRN
(+ V)
4
(DC OUT)
BLUE
(-)
5
(COMM.)
WHT 7
(INPUT A)
SWITCH
SETTINGS
LOGIC
MAG
SRC
SNK
LO FRQ
HI FRQ
LO BIAS
HI BIAS
SWITCH
SETTINGS
LOGIC MAG
SRC SNK
LO FRQ HI FRQ
LO BIAS HI BIAS
BRN
(+ V)
BLUE
(-)
WHT
SWITCH
SETTINGS
LOGIC MAG
SRC SNK
LO FRQ HI FRQ
LO BIAS HI BIAS
BRN
(+ V)
BLUE
(-)
WHT
TBA 4
(DC OUT)
TBC 5
(COMM.)
TBC 3
(INPUT A)
SWITCH
SETTINGS
LOGIC MAG
SRC SNK
LO FRQ HI FRQ
LO BIAS HI BIAS
RED TBA 4
(DC OUT)
BLK TBC 5
(COMM.)
TBC 3
(INPUT A)
WHT
GRN TBC 2
(INPUT B)
SWITCH
SETTINGS
LOGIC MAG
SRC SNK
LO FRQ HI FRQ
LO BIAS HI BIAS
ATBA 4
(DC OUT)
BTBC 5
(COMM.)
TBC 3
(INPUT A)
C
DTBC 2
(INPUT B)
SWITCH
SETTINGS
LOGIC MAG
SRC SNK
LO FRQ HI FRQ
LO BIAS HI BIAS
TBA 4
(DC OUT)
TBC 5
(COMM.)
TBC 3
(INPUT A)
TBC 2
(INPUT B)
A
(+ V)
B
(COMM)
C
Ch A)
D
(Ch B)
SWITCH
SETTINGS
LOGIC MAG
SRC SNK
LO FRQ HI FRQ
LO BIAS HI BIAS
TBA 4
(DC OUT)
TBC 5
(COMM.)
TBC 3
(INPUT A)
TBC 2
(INPUT B)
1
(+ V)
2
(COMM)
3
(Ch A)
4
(Ch B)
BLUE (Ch B)
RPGD:
TBA 4
(DC OUT)
TBC 5
(COMM.)
TBC 3
(INPUT A)
V+ 2
1 GND
3 INP
V+ 2
1 GND
3 INP
V+ 2
1 GND
3 INP
V+ 2
1 GND
3 INP
V+ 2
H.S. CNT 5
1 COM V+ 2
H.S. CNT 5
1 COM V+ 2
H.S. CNT 5
1 COM V+ 2
H.S. CNT 5
1 COM V+ 2
H.S. CNT 5
1 COM

M
1008 www.redlion.net
SENSOR
MODEL
LMPEC
MP25TA
MP37TA
MP37CA
MP62TA
MP75TX
LSC
RPGC
OLD
MODEL
OUTPUT
CONNECTIONS
GEM52
IFMA
IFMR
IMI
LD20, LD40,
LD2T, LD4T
LEGEND
MDC
LMPCC
ASTC, LMPC,
ZFG, ZCG,
HESS, PSAH
PSA6B
PSA7B
PSA8B
PSAFP
PSAC
KEY
BLUE
(Ch A)
BLACK
OR
BROWN
(+ V)
BLACK
WHITE
OR
BLUE
KEY
B (-) or (COMM )
A (+ V)
C (Ch A)
RED
BLACK
WHITE
PSA1B
PSA2B
B (-) or (COMM )
A (+ V)
C (Ch A)
RED
BLACK
WHITE
WHITE
(Ch A)
BLACK
(-) or
(COMM)
RED
(+ V)
BLACK
(Ch A)
BLUE
(-) or
(COMM)
BROWN
(+ V)
SWITCH
SETTINGS
LOGIC MAG
SRC SNK
LO FRQ HI FRQ
LO BIAS HI BIAS
WHT
or
BLUE
TBC 5
(MAG. PKUP)
BLK TBC 6
(COMM.)
SWITCH
SETTINGS
LOGIC MAG
SRC SNK
LO FRQ HI FRQ
LO BIAS HI BIAS
SWITCH
SETTINGS
LOGIC MAG
SRC SNK
LO FRQ HI FRQ
LO BIAS HI BIAS
BLK
or
BRN
BLUE
TBA 4
(DC OUT)
TBC 4/2
(INPUT)
SWITCH
SETTINGS
LOGIC MAG
SRC SNK
LO FRQ HI FRQ
LO BIAS HI BIAS
RED
(+ V)
BLK
(-)
WHT
(Ch A)
SWITCH
SETTINGS
LOGIC MAG
SRC SNK
LO FRQ HI FRQ
LO BIAS HI BIAS
BRN
(+ V)
BLUE
(-)
BLK
(Ch A)
SWITCH
SETTINGS
LOGIC MAG
SRC SNK
LO FRQ HI FRQ
LO BIAS HI BIAS
A
(+ V)
B
(-)
C
(Ch A)
A
(+ V)
7
(+12 V)
B
(-)
8
(INPUT)
C
(Ch A)
9
(COMM.)
SWITCH
SETTINGS
LOGIC
SRC
SNK
9
(COMM.)
BLK
8
(INPUT)
SWITCH
SETTINGS
LOGIC
SRC
SNK
WHT
or
BLUE
7
(+12 V)
8
(INPUT)
BLK
or
BRN
SWITCH
SETTINGS
BLUE
SRC
LOGIC
SNK
7
(+12 V)
9
(COMM.)
RED
(+ V)
BLK
(-)
8
(INPUT)
WHT
(Ch A)
SRC
SNK
SWITCH
SETTINGS
LOGIC
BRN
(+ V)
7
(+12 V)
BLUE
(-)
8
(INPUT)
BLK
(Ch A)
9
(COMM.)
SRC
SNK
SWITCH
SETTINGS
LOGIC
A
(+ V)
7
(+12 V)
B
(-)
8
(INPUT)
C
(ChA)
9
(COMM.)
SWITCH
SETTINGS
LOGIC
SRC
SNK
BRN
(+ V)
5
(+12 VDC)
BLUE
(-)
7
(COMM.)
BLK
(Ch A)
6
(SIG. IN)
SWITCH
SETTINGS
MAG. PKUP.
LOGIC
NPN OC
5
(+12 VDC )
6
(SIG. IN)
RED
(+ V)
BLK
(-)
7
(COMM.)
WHT
(Ch A)
SWITCH
SETTINGS
MAG. PKUP.
LOGIC
NPN OC
5
(+12 VDC )
6
(SIG. IN)
7
(COMM.)
BLK
or
BRN
SWITCH
SETTINGS
BLUE
1.5 K
MAG. PKUP.
LOGIC
NPN OC
6
(SIG. IN)
BLK 7
(COMM.)
SWITCH
SETTINGS
LOGIC
MAG. PKUP.
SRC
NPN OC
WHT
or
BLUE
A
(+ V)
5
(+12 VDC )
B
(-)
7
(COMM.)
C
(Ch A)
6
(SIG. IN)
SWITCH
SETTINGS
LOGIC
MAG. PKUP.
SRC
NPN OC
A
(+ V)
5
(+12 VDC )
B
(-)
7
(COMM.)
C
(Ch A)
6
(SIG. IN)
SWITCH
SETTINGS
LOGIC
MAG. PKUP.
SRC
NPN OC
SWITCH
SETTINGS
LOGIC MAG
SNK SRC
LO FRQ
HI FRQ
WHT
or
BLUE
BLK
BLK
or
BRN
BLUE
2.2 K
SWITCH
SETTINGS
LOGIC MAG
SNK SRC
LO FRQ
HI FRQ
RED
(+ V)
BLK
(-)
WHT
(Ch A)
SWITCH
SETTINGS
LOGIC MAG
SNK SRC
LO FRQ
HI FRQ
TBC 1
(INPUT A)
TBA 3
(DC OUT)
TBA 4/5
(COMM.)
A
(+ V)
B
(-)
C
(Ch A)
SWITCH
SETTINGS
LOGIC MAG
SNK SRC
LO FRQ
HI FRQ
BRN
(+ V)
BLUE
(-)
BLK
(Ch A)
SWITCH
SETTINGS
LOGIC MAG
SNK SRC
LO FRQ
HI FRQ
Not applicable for INP B.
Only LD200P0/LD4006P0
BLK
or
BRN
BLUE
2.2 K
RED
(+ V)
BLK
(-)
WHT
(Ch A)
TBB1
(INP A)
TBA 4
(DC +)
TBA 5
(DC -)
1
ON
SWITCH
SETTINGS
2 3 45
1
ON
SWITCH
SETTINGS
2 3 45
BRN
(+ V)
BLUE
(-)
BLK
(Ch A)
1
ON
SWITCH
SETTINGS
2345
BLK
WHT
or
BLUE
TBB 1
(INP A)
TBB 4
(COMM)
1
ON
SWITCH
SETTINGS
2345
A
(+ V)
B
(-)
C
(Ch A)
1
ON
SWITCH
SETTINGS
2 3 45
A
(+ V)
B
(-)
C
(Ch A)
1
ON
SWITCH
SETTINGS
2 3 45
NOT
APPLICABLE
RED
(+ V)
BLK
(-)
WHT
(Ch A)
TBA 6
(DC OUT)
TBA 5
(COMM.)
TBA 4
(CNT. IN )
SWITCH
SETTINGS
SNK
SRC
LO FRQ HI FRQ
LO BIAS HI BIAS
LIBC1 / LIBC2
LNXC1 / LNXC2
BLK
or
BRN
BLUE
SWITCH
SETTINGS
SNK
SRC
LO FRQ HI FRQ
LO BIAS HI BIAS
BRN
(+ V)
BLUE
(-)
BLK
(Ch A)
SWITCH
SETTINGS
SNK
SRC
LO FRQ HI FRQ
LO BIAS HI BIAS
A
(+ V)
B
(-)
C
(Ch A)
SWITCH
SETTINGS
SNK
SRC
LO FRQ HI FRQ
LO BIAS HI BIAS
A
(+ V)
B
(-)
C
(Ch A)
SWITCH
SETTINGS
SNK
SRC
LO FRQ HI FRQ
LO BIAS HI BIAS
A
(+ V)
B
(-)
C
(Ch A)
SWITCH
SETTINGS
LOGIC MAG
SNK SRC
SWITCH
SETTINGS
LOGIC MAG
SNK SRC
WHT
or
BLUE
BLK
BLK
or
BRN
BLUE
2.2 K
SWITCH
SETTINGS
LOGIC MAG
SNK SRC
TBB 2
(FB)
TBA 3
(DC OUT)
TBB 3
(COMM.)
RED
(+ V)
BLK
(-)
WHT
(Ch A)
SWITCH
SETTINGS
LOGIC MAG
SNK SRC
BRN
(+ V)
BLUE
(-)
BLK
(Ch A)
SWITCH
SETTINGS
LOGIC MAG
SNK SRC
A
(+ V)
B
(-)
C
(Ch A)
SWITCH
SETTINGS
LOGIC MAG
SNK SRC
TBC 4/2
(INPUT)
TBA 4
(DC OUT)
TBC 6
(COMM.)
TBC 4/2
(INPUT)
TBA 4
(DC OUT)
TBC 6
(COMM.)
TBC 4/2
(INPUT)
TBA 4
(DC OUT)
TBC 6
(COMM.)
A
(+ V)
B
(-)
C
(Ch A) TBC 4/2
(INPUT)
TBA 4
(DC OUT)
TBC 6
(COMM.)
TBB1
(INP A)
TBA 4
(DC +)
TBA 5
(DC -)
TBB1
(INP A)
TBA 4
(DC +)
TBA 5
(DC -)
TBB1
(INP A)
TBA 4
(DC +)
TBA 5
(DC -)
TBB1
(INP A)
TBA 4
(DC +)
TBA 5
(DC -)
TBC 1
(INPUT A)
TBC 3
(COMM.) TBC 1
(INPUT A)
TBA 3
(DC OUT)
TBA 4/5
(COMM.)
A
(+ V)
B
(-)
C
(Ch A)
TBC 1
(INPUT A)
TBA 3
(DC OUT)
TBA 4/5
(COMM.)
TBC 1
(INPUT A)
TBA 3
(DC OUT)
TBC 3
(COMM.)
TBC 1
(INPUT A)
TBA 3
(DC OUT)
TBA 4/5
(COMM.)
TBA 6
(DC OUT)
TBA 4
(CNT. IN )
TBA 6
(DC OUT)
TBA 5
(COMM.)
TBA 4
(CNT. IN )
TBA 6
(DC OUT)
TBA 5
(COMM.)
TBA 4
(CNT. IN )
TBA 6
(DC OUT)
TBA 5
(COMM.)
TBA 4
(CNT. IN )
TBB 2
(FB)
TBA 3
(DC OUT)
TBB 3
(COMM.)
TBB 2
(FB)
TBA 3
(DC OUT)
TBB 3
(COMM.)
TBB 2
(FB)
TBA 3
(DC OUT)
TBB 3
(COMM.)
TBB 2
(FB)
TBA 3
(DC OUT)
TBB 3
(COMM.)
TBB 2
(FB)
TBB 3
(COMM.)
SWITCH
SETTINGS
LOGIC MAG
SNK SRC
LO FRQ
HI FRQ

M
10091-717-767-6511
SENSOR
MODEL
PRMDC
RCMDC
RRMDC
ZBG
ZBH
(M12 Connector)
ZDH
ZLZ
ZNH
ZUK
OLD
MODEL
OUTPUT
CONNECTIONS
PRDC
RCDC
RRDC
ZBG
ZBH
ZHG
RED
(+ V)
GREEN
(Ch B)
WHITE
(Ch A)
8
3
4
56
7
1
2
RPGB
RPGH
KEY
D (Ch B)
A (+ V)
B (-) or (COMM)
C (Ch A)
F
E
RED
BLACK
WHITE
GREEN
Ch B
Ch A
COMM
+ V
4
3
2
1
ZHG
ZBG and ZBH
* Designates wires from the listed counter.
ARJ, LSM, LSQ,
RPGO, RPGQ,
ZCH, ZFH, ZGH,
ZMD, ZOD, ZOH,
ZPJ, ZRJ, ZRL, ZSD
RPGD
LE, RPGN RPGB
WHITE
(Ch A)
GREEN (Ch B)
BLACK (-) or
(COMM)
RED (+ V) KEY
D (Ch B)
A (+ V)
B (-) or (COMM)
C (Ch A)
F
EG
RED
BLACK
WHITE
GREEN
BLACK
(-) or
(COMM)
BLACK
(NPN CLOSED)
BLUE (-)
or (COMM)
BROWN (+ V)
BLACK
(PNP OPEN)
WHITE
(NPN OPEN)
BLUE (-)
or (COMM)
BROWN (+ V)
WHITE
(NPN OPEN)
GEM52
IFMA
IFMR
IMI
LD20, LD40,
LD2T, LD4T
LEGEND
MDC LIBC1 / LIBC2
LNXC1 / LNXC2
TBC 4/2
(INPUT)
SWITCH
SETTINGS
LOGIC MAG
SRC SNK
LO FRQ HI FRQ
LO BIAS HI BIAS
TBA 4
(DC OUT)
TBC 6
(COMM.)
RED
(+ V)
BLK
(-)
WHT
(Ch A)
SWITCH
SETTINGS
LOGIC MAG
SRC SNK
LO FRQ HI FRQ
LO BIAS HI BIAS
A
(+ V)
B
(-)
C
(Ch A)
SWITCH
SETTINGS
LOGIC MAG
SRC SNK
LO FRQ HI FRQ
LO BIAS HI BIAS
A
(+ V)
B
(-)
C
(Ch A)
SWITCH
SETTINGS
LOGIC MAG
SRC SNK
LO FRQ HI FRQ
LO BIAS HI BIAS
1
(+ V)
2
(-)
3
(Ch A)
SWITCH
SETTINGS
LOGIC MAG
SRC SNK
LO FRQ HI FRQ
LO BIAS HI BIAS
BRN
(+ V)
BLUE
(-)
WHT
SWITCH
SETTINGS
LOGIC MAG
SRC SNK
LO FRQ HI FRQ
LO BIAS HI BIAS
BRN
(+ V)
BLUE
(-)
WHT
7
(+12 V)
8
(INPUT)
9
(COMM.)
RED
(+ V)
BLK
(-)
WHT
(Ch A)
SRC
SNK
SWITCH
SETTINGS
LOGIC
7
(+12 V)
8
(INPUT)
9
(COMM.)
A
(+ V)
B
(-)
C
(Ch A)
SRC
SNK
SWITCH
SETTINGS
LOGIC
7
(+12 V)
8
(INPUT)
9
(COMM.)
A
(+ V)
B
(-)
C
(Ch A)
SRC
SNK
SWITCH
SETTINGS
LOGIC
7
(+12 V)
8
(INPUT)
9
(COMM.)
1
(+ V)
2
(-)
3
(Ch A)
SRC
SNK
SWITCH
SETTINGS
LOGIC
7
(+12 V)
8
(INPUT)
9
(COMM.)
BRN
(+ V)
BLUE
(-)
WHT
SRC
SNK
SWITCH
SETTINGS
LOGIC
7
(+12 V)
8
(INPUT)
9
(COMM.)
BRN
(+ V)
BLUE
(-)
WHT
SRC
SNK
SWITCH
SETTINGS
LOGIC
5
(+12 VDC)
6
(SIG. IN)
BRN
(+ V)
BLUE
(-)
7
(COMM.)
WHT
SWITCH
SETTINGS
MAG. PKUP.
LOGIC
NPN OC
5
(+12 VDC)
6
(SIG. IN)
BRN
(+ V)
BLUE
(-)
7
(COMM.)
WHT
SWITCH
SETTINGS
MAG. PKUP.
LOGIC
NPN OC
5
(+12 VDC )
7
(COMM.)
6
(SIG. IN)
1
(+ V)
2
(-)
3
(Ch A)
SWITCH
SETTINGS
MAG. PKUP.
LOGIC
NPN OC
5
(+12 VDC )
7
(COMM.)
6
(SIG. IN)
A
(+ V)
B
(-)
C
(Ch A)
SWITCH
SETTINGS
MAG. PKUP.
LOGIC
NPN OC
5
(+12 VDC)
6
(SIG. IN)
RED
(+ V)
BLK
(-)
7
(COMM.)
WHT
(Ch A)
SWITCH
SETTINGS
MAG. PKUP.
LOGIC
NPN OC
5
(+12 VDC)
6
(SIG. IN)
A
(+ V)
B
(-)
7
(COMM.)
C
(Ch A)
SWITCH
SETTINGS
MAG. PKUP.
LOGIC
NPN OC
TBC 1
(INPUT A)
TBA 3
(DC OUT)
TBA 4/5
(COMM.)
RED
BLK
WHT
GRN
or
BLUE TBC 2
(INPUT B)
SWITCH
SETTINGS
LOGIC MAG
SNK SRC
LO FRQ
HI FRQ
SWITCH
SETTINGS
LOGIC MAG
SNK SRC
LO FRQ
HI FRQ
A
(+ V)
B
(-)
C
(Ch A)
D
(Ch B)
SWITCH
SETTINGS
LOGIC MAG
SNK SRC
LO FRQ
HI FRQ
1
(+ V)
2
(-)
3
(Ch A)
4
(Ch B)
SWITCH
SETTINGS
LOGIC MAG
SNK SRC
LO FRQ
HI FRQ
BRN
(+ V)
BLUE
(-)
WHT
SWITCH
SETTINGS
LOGIC MAG
SNK SRC
LO FRQ
HI FRQ
BRN
(+ V)
BLUE
(-)
WHT
SWITCH
SETTINGS
LOGIC MAG
SNK SRC
LO FRQ
HI FRQ
RED
(+ V)
BLK
(-)
WHT
(Ch A)
SWITCH
SETTINGS
SNK
SRC
LO FRQ HI FRQ
LO BIAS HI BIAS
A
(+ V)
B
(-)
C
(Ch A)
SWITCH
SETTINGS
SNK
SRC
LO FRQ HI FRQ
LO BIAS HI BIAS
A
(+ V)
B
(-)
SWITCH
SETTINGS
SNK
SRC
LO FRQ HI FRQ
LO BIAS HI BIAS
1
(+ V)
2
(-)
3
(Ch A)
SWITCH
SETTINGS
SNK
SRC
LO FRQ HI FRQ
LO BIAS HI BIAS
BRN
(+ V)
BLUE
(-)
WHT
SWITCH
SETTINGS
SNK
SRC
LO FRQ HI FRQ
LO BIAS HI BIAS
BRN
(+ V)
BLUE
(-)
WHT
TBA 6
(DC OUT)
TBA 5
(COMM.)
TBA 4
(CNT. IN )
SWITCH
SETTINGS
SNK
SRC
LO FRQ HI FRQ
LO BIAS HI BIAS
TBB1
(INP A)
TBA 4
(DC +)
TBA 5
(DC -)
GRN
or
BLUE
TBB 2
(INP B)
1
ON
SWITCH
SETTINGS
2 3 45
RED
(+ V)
BLK
(-)
WHT
(Ch A)
Only LD200P0/LD4006P0
1
ON
SWITCH
SETTINGS
2 3 45
A
(+ V)
B
(-)
C
(Ch A)
Only LD200P0/LD4006P0
D
(Ch B)
1
ON
SWITCH
SETTINGS
2 3 45
A
(+ V)
B
(-)
C
(Ch A)
Only LD200P0/LD4006P0
4
(Ch B)
1
ON
SWITCH
SETTINGS
2345
1
(+ V)
2
(-)
3
(Ch A)
Only LD200P0/LD4006P0
BRN
(+ V)
BLUE
(-)
WHT
1
ON
SWITCH
SETTINGS
2 3 45
TBB 1
(INP A)
TBA 4
(DC +)
TBA 5
(DC -)
BRN
(+ V)
BLUE
(-)
WHT
1
ON
SWITCH
SETTINGS
2 3 45
TBB 2
(FB)
TBA 3
(DC OUT)
TBB 3
(COMM.)
RED
(+ V)
BLK
(-)
WHT
(Ch A)
SWITCH
SETTINGS
LOGIC MAG
SNK SRC
A
(+ V)
B
(-)
C
(Ch A)
SWITCH
SETTINGS
LOGIC MAG
SNK SRC
A
(+ V)
B
(-)
C
(Ch A)
SWITCH
SETTINGS
LOGIC MAG
SNK SRC
1
(+ V)
2
(-)
3
(Ch A)
SWITCH
SETTINGS
LOGIC MAG
SNK SRC
BRN
(+ V)
BLUE
(-)
WHT
SWITCH
SETTINGS
LOGIC MAG
SNK SRC
BRN
(+ V)
BLUE
(-)
WHT
SWITCH
SETTINGS
LOGIC MAG
SNK SRC
BLUE (Ch B)
RPGD:
C
(Ch A)
D
(Ch B)
A
(+ V)
B
(-)
C
(Ch A)
D
(Ch B)
TBB1
(INP A)
TBA 4
(DC +)
TBA 5
(DC -)
TBB 2
(INP B)
TBB1
(INP A)
TBA 4
(DC +)
TBA 5
(DC -)
TBB 2
(INP B)
TBB1
(INP A)
TBA 4
(DC +)
TBA 5
(DC -)
TBB 2
(INP B)
TBB 2
(FB)
TBA 3
(DC OUT)
TBB 3
(COMM.)
TBB 2
(FB)
TBA 3
(DC OUT)
TBB 3
(COMM.)
TBB 2
(FB)
TBA 3
(DC OUT)
TBB 3
(COMM.)
TBB 2
(FB)
TBA 3
(DC OUT)
TBB 3
(COMM.)
TBB 2
(FB)
TBA 3
(DC OUT)
TBB 3
(COMM.)
TBA 6
(DC OUT)
TBA 5
(COMM.)
TBA 4
(CNT. IN )
TBA 6
(DC OUT)
TBA 5
(COMM.)
TBA 4
(CNT. IN )
TBA 6
(DC OUT)
TBA 5
(COMM.)
TBA 4
(CNT. IN )
TBA 6
(DC OUT)
TBA 5
(COMM.)
TBA 4
(CNT. IN )
TBA 6
(DC OUT)
TBA 5
(COMM.)
TBA 4
(CNT. IN )
TBC 1
(INPUT A)
TBA 3
(DC OUT)
TBA 4/5
(COMM.)
TBC 2
(INPUT B)
TBC 1
(INPUT A)
TBA 3
(DC OUT)
TBA 4/5
(COMM.)
TBC 2
(INPUT B)
TBC 1
(INPUT A)
TBA 3
(DC OUT)
TBA 4/5
(COMM.)
TBC 2
(INPUT B)
TBC 1
(INPUT A)
TBA 3
(DC OUT)
TBA 4/5
(COMM.)
TBC 1
(INPUT A)
TBA 3
(DC OUT)
TBA 4/5
(COMM.)
TBB 1
(INP A)
TBA 4
(DC +)
TBA 5
(DC -)
TBC 4/2
(INPUT)
TBA 4
(DC OUT)
TBC 6
(COMM.)
TBC 4/2
(INPUT)
TBA 4
(DC OUT)
TBC 6
(COMM.)
TBC 4/2
(INPUT)
TBA 4
(DC OUT)
TBC 6
(COMM.)
TBC 4/2
(INPUT)
TBA 4
(DC OUT)
TBC 6
(COMM.)
TBC 4/2
(INPUT)
TBA 4
(DC OUT)
TBC 6
(COMM.)

M
1010 www.redlion.net
SENSOR
MODEL
LMPEC
MP25TA
MP37TA
MP37CA
MP62TA
MP75TX
LSC
RPGC
OLD
MODEL
OUTPUT
CONNECTIONS
PRS1 / PRA1
PRA2
PAXC, PAXI,
PAXR
PAXC PAXI
Dual Quad A
PAXC PAXI
Dual Quad B
PAXTM, PAXCK
LMPCC
ASTC, LMPC,
ZFG, ZCG,
HESS, PSAH
PSA6B
PSA7B
PSA8B
PSAFP
PSAC
PAXLC, PAXLR
PAXLPT
KEY
BLUE
(Ch A)
BLACK
OR
BROWN
(+ V)
BLACK
WHITE
OR
BLUE
KEY
B (-) or (COMM )
A (+ V)
C (Ch A)
RED
BLACK
WHITE
PSA1B
PSA2B
B (-) or (COMM )
A (+ V)
C (Ch A)
RED
BLACK
WHITE
WHITE
(Ch A)
BLACK
(-) or
(COMM)
RED
(+ V)
BLACK
(Ch A)
BLUE
(-) or
(COMM)
BROWN
(+ V)
A
(+ V) 9
B
(-)8
C
(Ch A) 7
SWITCH
SETTINGS
LOGIC
SRC
SNK
WHT
or
BLUE
7
BLK 8
SWITCH
SETTINGS
LOGIC
SRC
SNK
9
7
BLK
or
BRN
SWITCH
SETTINGS
BLUE
LOGIC
SRC
SNK
9
7
RED
(+ V)
BLK
(-)8
WHT
(Ch A)
SWITCH
SETTINGS
LOGIC
SRC
SNK
9
7
BRN
(+ V)
BLUE
(-)8
SWITCH
SETTINGS
LOGIC
SRC
SNK
9
7
A
(+ V)
B
(-)8
C
(Ch A)
SWITCH
SETTINGS
LOGIC
SRC
SNK
BLK
(Ch A)
A
(+ V) 9
B
(-)8
C
(Ch A) 7
WHT
or
BLUE
7
BLK 8
9
7
BLK
or
BRN
BLUE
9
7
RED
(+ V)
BLK
(-)8
WHT
(Ch A)
9
7
BRN
(+ V)
BLUE
(-)8
9
7
A
(+ V)
B
(-)8
C
(Ch A)
BLK
(Ch A)
SWITCH
SETTINGS
SNK
LOGIC
SRC
SW1 SW2
SWITCH
SETTINGS
SNK
LOGIC
SRC
SW1 SW2
SWITCH
SETTINGS
SNK
LOGIC
SRC
SW1 SW2
SWITCH
SETTINGS
SNK
LOGIC
SRC
SW1 SW2
SWITCH
SETTINGS
SNK
LOGIC
SRC
SW1 SW2
SWITCH
SETTINGS
SNK
LOGIC
SRC
SW1 SW2
NOT
APPLICABLE
NOT
APPLICABLE
NOT
APPLICABLE
NOT
APPLICABLE
NOT
APPLICABLE
NOT
APPLICABLE
NOT
APPLICABLE
NOT
APPLICABLE
NOT
APPLICABLE
NOT
APPLICABLE
NOT
APPLICABLE
NOT
APPLICABLE
SWITCH
SETTINGS
5or6
(INP A/B)
3
(+12 V)
4
(COMM)
RED
(+ V)
BLK
(-)
WHT
(Ch A)
6
ON
5
4
3
2
1
SWITCH
SETTINGS
5or6
(INP A/B)
3
(+12 V)
4
(COMM)
A
(+ V)
B
(-)
C
(Ch A)
6
ON
5
4
3
2
1
SWITCH
SETTINGS
5or6
(INP A/B)
3
(+12 V)
4
(COMM)
A
(+ V)
B
(-)
C
(Ch A)
6
ON
5
4
3
2
1
SWITCH
SETTINGS
5or6
(INP A/B)
3
(+12 V)
4
(COMM)
BRN
(+ V)
BLUE
(-)
BLK
(Ch A)
6
ON
5
4
3
2
1
WHT
or
BLUE
BLK
SWITCH
SETTINGS
6
ON
5
4
3
2
1
5
(INP A)
4
(COMM)
5or6
(INP A/B)
3
(+12 V)
4
(COMM)
BLK
or
BRN
BLUE
2.2 K
SWITCH
SETTINGS
6
ON
5
4
3
2
1
5
(INP)
3
(+12 V)
4
(COMM)
RED
(+ V)
BLK
(-)
WHT
(Ch A) 5
(INP)
3
(+12 V)
4
(COMM)
A
(+ V)
B
(-)
C
(Ch A)
5
(INP)
3
(+12 V)
4
(COMM)
A
(+ V)
B
(-)
C
(Ch A)
5
(INP)
3
(+12 V)
4
(COMM)
BRN
(+ V)
BLUE
(-)
BLK
(Ch A)
WHT
or
BLUE
BLK
5
(INP)
4
(COMM)
5
(INP)
3
(+12 V)
4
(COMM)
BLK
or
BRN
BLUE
2.2 K
1
ON
SWITCH
SETTINGS
2 3 4
1
ON
SWITCH
SETTINGS
2 3 4
1
ON
SWITCH
SETTINGS
2 3 4
1
ON
SWITCH
SETTINGS
234
1
ON
SWITCH
SETTINGS
2 3 4
1
ON
SWITCH
SETTINGS
2 3 4
5or 6
(INP A/B)
3
(+12 V)
4
(COMM)
BRN
(+ V)
BLUE
(-)
BLK
(Ch A)
5or6
(INP A/B)
3
(+12 V)
4
(COMM)
BLK
or
BRN
BLUE
2.2 K JUMPER
SRC
JUMPER
SNK
Not applicable for PAXLC.
NOT
APPLICABLE
NOT
APPLICABLE
NOT
APPLICABLE
NOT
APPLICABLE

M
10111-717-767-6511
SENSOR
MODEL
PRMDC
RCMDC
RRMDC
ZBG
ZBH
(M12 Connector)
ZDH
ZLZ
ZNH
ZUK
OLD
MODEL
OUTPUT
CONNECTIONS
PRDC
RCDC
RRDC
ZBG
ZBH
ZHG
RED
(+ V)
GREEN
(Ch B)
WHITE
(Ch A)
8
3
4
56
7
1
2
RPGB
RPGH
KEY
D (Ch B)
A (+ V)
B (-) or (COMM)
C (Ch A)
F
E
RED
BLACK
WHITE
GREEN
Ch B
Ch A
COMM
+ V
4
3
2
1
ZHG
ZBG and ZBH
ARJ, LSM, LSQ,
RPGO, RPGQ,
ZCH, ZFH, ZGH,
ZMD, ZOD, ZOH,
ZPJ, ZRJ, ZRL, ZSD,
RPGD
LE, RPGN RPGB
WHITE
(Ch A)
GREEN (Ch B)
BLACK (-) or
(COMM)
RED (+ V) KEY
D (Ch B)
A (+ V)
B (-) or (COMM)
C (Ch A)
F
EG
RED
BLACK
WHITE
GREEN
BLACK
(-) or
(COMM)
BLACK
(NPN CLOSED)
BLUE (-)
or (COMM)
BROWN (+ V)
BLACK
(PNP OPEN)
WHITE
(NPN OPEN)
BLUE (-)
or (COMM)
BROWN (+ V)
WHITE
(NPN OPEN)
PRS1 / PRA1
PRA2
PAXC, PAXI,
PAXR
PAXC PAXI
Dual Quad A
PAXC PAXI
Dual Quad B
PAXTM, PAXCK PAXLC, PAXLR
PAXLPT
BLUE (Ch B)
RPGD:
9
7
RED
(+ V)
BLK
(-)8
WHT
(Ch A)
SWITCH
SETTINGS
LOGIC
SRC
SNK
9
7
RED
(+ V)
BLK
(-)8
WHT
(Ch A)
SWITCH
SETTINGS
SNK
LOGIC
SRC
SW1 SW2
9
7
A
(+ V)
B
(-)8
C
(Ch A)
SWITCH
SETTINGS
LOGIC
SRC
SNK
9
7
A
(+ V)
B
(-)8
C
(Ch A)
SWITCH
SETTINGS
SNK
LOGIC
SRC
SW1 SW2
9
7
A
(+ V)
B
(-)8
C
(Ch A)
SWITCH
SETTINGS
LOGIC
SRC
SNK
9
7
A
(+ V)
B
(-)8
C
(Ch A)
SWITCH
SETTINGS
SNK
LOGIC
SRC
SW1 SW2
9
7
1
(+ V)
2
(-)8
3
(Ch A)
SWITCH
SETTINGS
LOGIC
SRC
SNK
9
7
1
(+ V)
2
(-)8
3
(Ch A)
SWITCH
SETTINGS
SNK
LOGIC
SRC
SW1 SW2
9
7
BRN
(+ V)
BLUE
(-)8
SWITCH
SETTINGS
LOGIC
SRC
SNK
WHT
9
7
BRN
(+ V)
BLUE
(-)8
WHT
SWITCH
SETTINGS
SNK
LOGIC
SRC
SW1 SW2
9
7
BRN
(+ V)
BLUE
(-)8
SWITCH
SETTINGS
LOGIC
SRC
SNK
WHT
9
7
BRN
(+ V)
BLUE
(-)8
WHT
SWITCH
SETTINGS
SNK
LOGIC
SRC
SW1 SW2
NOT
APPLICABLE
NOT
APPLICABLE
NOT
APPLICABLE
NOT
APPLICABLE
SWITCH
SETTINGS
6
ON
5
4
3
2
1
5
(INP A)
3
(+12 V)
4
(COMM)
GRN
or
BLUE
(QUAD)
6
(INP B)
RED
(+ V)
BLK
(-)
WHT
(Ch A)
SWITCH
SETTINGS
6
ON
5
4
3
2
1
5
(INP A)
3
(+12 V)
4
(COMM)
D
(QUAD)
6
(INP B)
A
(+ V)
B
C
(Ch A)
SWITCH
SETTINGS
6
ON
5
4
3
2
1
5
(INP A)
3
(+12 V)
4
(COMM)
D
(QUAD) 6
(INP B)
A
(+ V)
B
(-)
C
(Ch A)
SWITCH
SETTINGS
6
ON
5
4
3
2
1
5
(INP A)
3
(+12 V)
4
(COMM)
4
(QUAD) 6
(INP B)
1
(+ V)
2
(-)
3
(Ch A)
SWITCH
SETTINGS
5or6
(INP A/B)
3
(+12 V)
4
(COMM)
BRN
(+ V)
BLUE
(-)
WHT
6
ON
5
4
3
2
1
SWITCH
SETTINGS
5or6
(INP A/B)
3
(+12 V)
4
(COMM)
BRN
(+ V)
BLUE
(-)
WHT
6
ON
5
4
3
2
1
SWITCH
SETTINGS
6
ON
5
4
3
2
1
5
(INP A)
3
(+12 V)
4
(COMM)
GRN
or
BLUE
(QUAD)
7
(USER 1)
RED
(+ V)
BLK
(-)
WHT
(Ch A)
SWITCH
SETTINGS
6
ON
5
4
3
2
1
5
(INP A)
3
(+12 V)
4
(COMM)
D
(QUAD)
7
(USER 1)
A
(+ V)
B
(-)
C
(Ch A)
SWITCH
SETTINGS
6
ON
5
4
3
2
1
5
(INP A)
3
(+12 V)
4
(COMM)
D
(QUAD) 7
(USER 1)
A
(+ V)
B
(-)
C
(Ch A)
SWITCH
SETTINGS
6
ON
5
4
3
2
1
5
(INP A)
3
(+12 V)
4
(COMM)
4
(QUAD) 7
(USER 1)
1
(+ V)
2
(-)
3
(Ch A)
SWITCH
SETTINGS
6
ON
5
4
3
2
1
6
(INP B)
3
(+12 V)
4
(COMM)
GRN
or
BLUE
(QUAD)
8
(USER 2)
RED
(+ V)
BLK
(-)
WHT
(Ch A)
SWITCH
SETTINGS
6
ON
5
4
3
2
1
6
(INP B)
3
(+12 V)
4
(COMM)
D
(QUAD) 8
(USER 2)
A
(+ V)
B
(-)
C
(Ch A)
SWITCH
SETTINGS
6
ON
5
4
3
2
1
6
(INP B)
3
(+12 V)
4
(COMM)
D
(QUAD) 8
(USER 2)
A
(+ V)
B
(-)
C
(Ch A)
SWITCH
SETTINGS
6
ON
5
4
3
2
1
6
(INP B)
3
(+12 V)
4
(COMM)
4
(QUAD) 8
(USER 2)
1
(+ V)
2
(-)
3
(Ch A)
NOT
APPLICABLE
NOT
APPLICABLE
NOT
APPLICABLE
NOT
APPLICABLE
5
(INP)
3
(+12 V)
4
(COMM)
RED
(+ V)
BLK
(-)
WHT
(Ch A)
1
ON
SWITCH
SETTINGS
2 3 4
5
(INP)
3
(+12 V)
4
(COMM)
A
(+ V)
B
(-)
C
(Ch A)
1
ON
SWITCH
SETTINGS
2 3 4
5
(INP)
3
(+12 V)
4
(COMM)
A
(+ V)
B
(-)
C
(Ch A)
1
ON
SWITCH
SETTINGS
2 3 4
5
(INP)
3
(+12 V)
4
(COMM)
1
(+ V)
2
(-)
3
(Ch A)
1
ON
SWITCH
SETTINGS
2 3 4
5
(INP)
3
(+12 V)
4
(COMM)
BRN
(+ V)
BLUE
(-)
WHT
1
ON
SWITCH
SETTINGS
2 3 4
5
(INP)
3
(+12 V)
4
(COMM)
BRN
(+ V)
BLUE
(-)
WHT
1
ON
SWITCH
SETTINGS
2 3 4
5or6
(INP A/B)
3
(+12 V)
4
(COMM)
BRN
(+ V)
BLUE
(-)
WHT JUMPER
SNK
5or6
(INP A/B)
3
(+12 V)
4
(COMM)
BRN
(+ V)
BLUE
(-)
WHT JUMPER
SNK
User Jumper = SNK
User Jumper = SNK
User Jumper = SNK
User Jumper = SNK
User Jumper = SNK
User Jumper = SNK
User Jumper = SNK
User Jumper = SNK

M
1012 www.redlion.net
This page intentionally left blank.

The Trusted Source for
Innovative Control
Solutions
1-717-767-6511
PART NUMBER
INDEX
N
1013

N
1014 www.redlion.net
Terms of Sale
All sales of Red Lion Controls products are made subject to our Terms and Conditions of Sale, which are
available on request.
Summarized Warranty
Red Lion Controls warrants that all equipment shall be free from defects in material and workmanship under
normal use for a period of two years from date of shipment to Buyer save that Red Lion Controls does not
warrant that operation of the software will be completely uninterrupted or error free, or that all program errors
will be corrected. Buyer shall be responsible for determining that the equipment is suitable for Buyer’s use and
that such use complies with any applicable local, state or federal law.
Limitation of Liability
IN NO EVENT, REGARDLESS OF THE FORM OF ACTION, SHALL RED LION CONTROLS BE LIABLE FOR ANY
SPECIAL, INDIRECT, INCIDENTAL, OR CONSEQUENTIAL LOSSES OR DAMAGES ARISING OUT OF THE SALE
OF ITS PRODUCTS. BUYER’S EXCLUSIVE REMEDY ARISING OUT OF ITS PURCHASE AND USE OF RED LION
CONTROLS’S PRODUCTS, OR ARISING OUT OF ANYTHING DONE IN CONNECTION WITH ANY CONTRACT,
SHALL BE FOR DAMAGES NO GREATER IN AMOUNT IN AGGREGATE THAN THE PURCHASE PRICE OF THE
PRODUCTS IN RESPECT OF WHICH DAMAGES ARE CLAIMED.

N
10151-717-767-6511
PART NO. MODEL
NO. DESCRIPTION CAT
PAGE
SENSING GEARS
0900750 10/30 Gear, Standard Bore 831
0909999 10/30 Gear, Special Bore * 831
0910875 10/60 Gear, Standard Bore 831
0919999 10/60 Gear, Special Bore * 831
0920750 10/30 Gear Split, Standard Bore 831
0929999 10/30 Gear Split, Special Bore * 831
0930875 10/60 Gear Split, Standard Bore 831
0939999 10/60 Gear Split, Special Bore * 831
0941125 12/60 Gear, ARCJ-2A 831
0941375 12/60 Gear, ARCJ-2B 831
0941625 12/60 Gear, ARCJ-2C 831
0949999 12/60 Gear, Special Bore * 831
0950500 16/30 Gear, Standard Bore 831
0959999 16/30 Gear, Special Bore * 831
0960625 20/60 Gear, ARCJ-1A 831
0960875 20/60 Gear, ARCJ-1B 831
0970375 20/60 Gear, Standard Bore 831
0979999 20/60 Gear, Special Bore * 831
0980500 24/120 Gear, Standard Bore 831
0989999 24/120 Gear, Special Bore * 831
* Special Bore - Not Stocked at Factory, add $24.00 set up charge for each
different gear and/or bore size.
MISCELLANEOUS PRODUCTS
2101100 Replaced with CCARPG00 CALL
2101200 Replaced with CCBRPG00 CALL
2300200 Socket, 12-Pin NL
2500030 Connector, 3-Pin NL
PROXIMITY SENSORS
4100600 MPS Magnetic 822
SERIES 4 ROTARY PULSE GENERATORS
4210010 RPGO Discontinued. Replaced with ZOH0010A CALL
4210060 RPGO Discontinued. Replaced with ZOH0060A CALL
4210100 RPGO Discontinued. Replaced with ZOH0100A CALL
4210120 RPGO Discontinued. Replaced with ZOH0120A CALL
4210500 RPGO Discontinued. Replaced with ZOH0500A CALL
4210600 RPGO Discontinued. Replaced with ZOH0600A CALL
4211000 RPGO Discontinued. Replaced with ZOH1000A CALL
4211200 RPGO Discontinued. Replaced with ZOH1200A CALL
4410010 RPGN Discontinued. Replaced with ZNH0010H CALL
4410060 RPGN Discontinued. Replaced with ZNH0060H CALL
4410100 RPGN Discontinued. Replaced with ZNH0100H CALL
4410120 RPGN Discontinued. Replaced with ZNH0120H CALL
4410500 RPGN Discontinued. Replaced with ZNH0500H CALL
4410600 RPGN Discontinued. Replaced with ZNH0600H CALL
4411000 RPGN Discontinued. Replaced with ZNH1000H CALL
4411200 RPGN Discontinued. Replaced with ZNH1200H CALL
4600060 RPGB Discontinued. Replaced with ZBG00602 CALL
4600100 RPGB Discontinued. Replaced with ZBG01002 CALL
4600100M RPGB Discontinued. Replaced with ZBG01003 CALL
4600600 RPGB Discontinued. Replaced with ZBG06002 CALL
4600600M RPGB Discontinued. Replaced with ZBG06003 CALL
4601000 RPGB Discontinued. Replaced with ZBG10002 CALL
PART NO. MODEL
NO. DESCRIPTION CAT
PAGE
4601200 RPGB Discontinued. Replaced with ZBG12002 CALL
4610010 RPGB Discontinued. Replaced with ZBH00102 CALL
4610012 RPGB Discontinued. Replaced with ZBH00122 CALL
4610100 RPGB Discontinued. Replaced with ZBH01002 CALL
4610100M RPGB Discontinued. Replaced with ZBH01003 CALL
4610120 RPGB Discontinued. Replaced with ZBH01202 CALL
4610500 RPGB Discontinued. Replaced with ZBH05002 CALL
4610600 RPGB Discontinued. Replaced with ZBH06002 CALL
4610600M RPGB Discontinued. Replaced with ZBH06003 CALL
4700600 RPGH Discontinued. Replaced with ZHG06004 CALL
4701000 RPGH Discontinued. Replaced with ZHG10004 CALL
4701200 RPGH Discontinued. Replaced with ZHG12004 CALL
SERIES 5 ROTARY PULSE GENERATORS
5000060 RPGD Not Available Contact Technical Sales CALL
5000100 RPGD Not Available Contact Technical Sales CALL
5000600 RPGD Not Available Contact Technical Sales CALL
5001000 RPGD Not Available Contact Technical Sales CALL
5010100 RPGD Sealed Shaft Flange Mount Quad 100 PPR 855
5010600 RPGD Sealed Shaft Flange Mount Quad 600 PPR 855
5011000 RPGD Sealed Shaft Flange Mount Quad 1000 PPR 855
SENSOR MOUNTS
5400100 Block Mount 825
5403701 Plug Mount, Steel 825
5403702 Plug Mount, Stainless Steel 825
SIGNAL CONDITIONING DIN RAIL MODULE
AAMA3535 AAMA Universal, 3 Way Isolated 753
ANALOG ALARM DIN RAIL MODULE
AAMR6436 AAMR Dual Setpoint NL
APOLLO ACCESSORIES
ACA10000 ACA1 18" DIP Plug Cable Assembly NL
ACE10000 ACE1 Edgecard w/Solder Eyelet 3 & 4-Digit NL
ACE40000 ACE4 Edgcrd w/Solder Eyelet, 5 & 6-Digit NL
CONVERTER MODULE
AFCM0000 AFCM Analog to Frequency Converter Module 729
SIGNAL CONDITIONING DIN RAIL MODULES
AIMI0202 AIMI Passive Loop Powered 758
ANALOG ALARM DIN RAIL MODULE
AIMR5306 AIMR Loop Powered NL
APOLLO CLOCK/ELAPSED TIME INDICATORS
APLCK000 APLCK 115V NL
APLCK010 APLCK 230V NL
APOLLO CURRENT LOOP INDICATORS
APLCL400 APLCL W/o Excitation, 115V NL
APLCL401 APLCL W/Excitation, 115V NL
APLCL410 APLCL W/o Excitation, 230V NL
APLCL411 APLCL W/Excitation, 230V NL
APOLLO POWER-LINE MONITORS
APLHV400 APLHV 600 VAC Input, 115V NL
APLHV410 APLHV 600 VAC Input, 230V NL
NOTE
NL = Available, but not listed in the catalog.
See the support section of our website.
Revised 01/01/2009
PART NUMBER LIST

N
1016 www.redlion.net
PART NO. MODEL
NO. DESCRIPTION CAT
PAGE
APOLLO CURRENT METERS
APLIA400 APLIA AC, 115V NL
APLIA410 APLIA AC, 230V NL
APLID400 APLID DC, 115V NL
APLID410 APLID DC, 230V NL
APLIT405 APLIT 5AMP AC, 115V NL
APLIT415 APLIT 5AMP AC, 230V NL
APOLLO LOOP POWERED INDICATOR
APLLP500 APLLP 4-20mA/10-50mA NL
APOLLO PROCESS TIME INDICATORS
APLPT400 APLPT 4-Digit, 115V NL
APLPT410 APLPT 4-Digit, 230V NL
APLPT500 APLPT 5-Digit, 115V NL
APLPT510 APLPT 5-Digit, 230V NL
APOLLO PROCESS VOLTMETER
APLPV400 APLPV w/o Excitation, 115V NL
APLPV401 APLPV w/Excitation, 115V NL
APLPV410 APLPV w/o Excitation, 230V NL
APLPV411 APLPV w/Excitation, 230V NL
APOLLO RATE INDICATORS
APLR0600 APLR Time Base, 115V NL
APLR0610 APLR Time Base, 230V NL
APLR0630 APLR Time Base, 24VDC NL
APLRI600 APLRI Time Interval, 115V NL
APLRI610 APLRI Time Interval, 230V NL
APLRI630 APLRI Time Interval, 24VDC NL
APOLLO STRAIN-GAGE INDICATORS
APLSG400 APLSG Not Available Contact Technical Sales CALL
APOLLO SLAVE DISPLAYS
APLSP3A0 APLSP3 3-Digit, 5VDC NL
APLSP3B0 APLSP3 3-Digit, 10-28VDC NL
APLSP4A0 APLSP4 4-Digit, 5VDC NL
APLSP4B0 APLSP4 4-Digit, 10-28VDC NL
APLSP5A0 APLSP5 5-Digit, 5VDC NL
APLSP5B0 APLSP5 5-Digit, 10-28VDC NL
APLSP6A0 APLSP6 6-Digit, 5VDC NL
APLSP6B0 APLSP6 6-Digit, 10-28VDC NL
APOLLO THERMOCOUPLE INDICATORS
APLTC400 APLTC 115V NL
APLTC401 APLTC w/Serial, 115V NL
APLTC402 APLTC w/Alarms, 115V NL
APLTC403 APLTC w/Serial & Alarms, 115V NL
APLTC404 APLTC w/Alarms & Analog, 115V NL
APLTC405 APLTC w/Serial, Alarms, & Analog, 115V NL
APLTC410 APLTC 230V NL
APLTC411 APLTC w/Serial, 230V NL
APLTC412 APLTC w/Alarms, 230V NL
APLTC413 APLTC w/Serial & Alarms, 230V NL
APLTC414 APLTC w/Alarms & Analog, 230V NL
APLTC415 APLTC w/Serial, Alarms, & Analog, 230V NL
APOLLO VOLTMETERS
APLVA400 APLVA AC, 115V NL
APLVA410 APLVA AC, 230V NL
PART NO. MODEL
NO. DESCRIPTION CAT
PAGE
APLVD400 APLVD DC, 115V NL
APLVD410 APLVD DC, 230V NL
SIGNAL CONDITIONING DIN RAIL MODULES
APMR0016 APMR 3 Phase Fault Detector 230VAC 759
APMR0086 APMR 3 Phase Fault Detector 380VAC 759
APMR0096 APMR 3 Phase Fault Detector 480VAC 759
ACCESSORIES
APS01000 APS01 Accessory Power Supply, 115VAC 909
APS02000 APS02 Accessory Power Supply, 230VAC 909
APSCM010 10AMP Current Shunt NL
APSCM100 100AMP Current Shunt NL
APSIS000 APSIS Power Supply/Current Source, 115V 911
APSIS010 APSIS Power Supply/Current Source, 230V 911
C-FACE QUAD PHASE ENCODERS
ARA10256 ARJ Discontinued. Replaced with ZRJ0256A CALL
ARA11024 ARJ Discontinued. Replaced with ZRJ1024A CALL
ARC10256 ARJ Discontinued. See ZR series CALL
ARC11024 ARJ Discontinued. See ZR series CALL
C FLANGE ADAPTER RINGS MAGNETIC PICK-UP
ARCJ1000 ARCJ1 Small Ring w/o Gear 827
ARCJ1A00 ARCJ1 56C Magnetic Ring Kit 827
ARCJ1B00 ARCJ1 143TC Magnetic Ring Kit 827
C FLANGE ADAPTER RINGS WITH HESS SENSOR
ARCJ10Z0 ARCJ1 Small Ring w/o Gear 827
ARCJ1AZ0 ARCJ1 56C Ring Kit 827
ARCJ1BZ0 ARCJ1 143TC Ring Kit 827
C FLANGE ADAPTER RINGS MAGNETIC PICK-UP
ARCJ2000 ARCJ2 Large Ring w/o Gear 827
ARCJ2A00 ARCJ2 182TC Magnetic Ring Kit 827
ARCJ2B00 ARCJ2 213TC Magnetic Ring Kit 827
ARCJ2C00 ARCJ2 254TC Magnetic Ring Kit 827
C FLANGE ADAPTER RINGS WITH HESS SENSOR
ARCJ20Z0 ARCJ2 Large Ring w/o Gear 827
ARCJ2AZ0 ARCJ2 182TC Ring Kit 827
ARCJ2BZ0 ARCJ2 213TC Ring Kit 827
ARCJ2CZ0 ARCJ2 254TC Ring Kit 827
MISCELLANEOUS PRODUCTS
ASTC0000 ASTC In-Line Amplifier, NPN O.C. 823
APOLLO ACCESSORY BOARDS FOR SLAVE DISPLAY
ATB10000 ATB1 w/Terminal Blk for 16 BCD Inputs NL
ATB20000 ATB2 w/o Terminal Blk for 16 BCD Inputs NL
ATB30000 ATB3 w/Terminal Blk for 24 BCD Inputs NL
ATB40000 ATB4 w/o Terminal Blk for 24 BCD Inputs NL
DIN RAIL RELAY TERMINAL BLOCKS
AVMR0037 AVMR 24VAC/DC Input NL
AVMR4037 AVMR 24VAC/DC Output NL
BI-DIRECTIONAL MOTION DECODER
BDMD1000 BDMD x1 Module NL
BDMD2000 BDMD x2/x4 Module NL
BASE MOUNT KITS
BMK10000 BMK1 CUB 1 Base Mount Kit NL
BMK11000 BMK11 CUB5 or MLPS DIN Rail Base Mount Kit 991
BMK1A000 BMK1A CUB 1 Base Mount Kit NL
BMK20000 BMK2 CUB 2 Base Mount Kit NL
BMK30000 BMK3 Libra/Lynx Base Mount Kit 985
BMK40000 BMK4 Apollo/Gemini Base Mount Kit 985
NOTE
NL = Available, but not listed in the catalog.
See the support section of our website.
Revised 01/01/2009

N
10171-717-767-6511
PART NO. MODEL
NO. DESCRIPTION CAT
PAGE
BMK50000 BMK5 Cub 3 Base Mount Kit NL
BMK60000 BMK6 Open Base Mount Kit CUB4/DT7 987
BMK70000 BMK7 Base Mount Kit CUB4/DT7 W/MLPS 987
BMK7A000 BMK7A Base Mount CUB5 with MLPS 987
BMK80000 BMK8 Base Mount Kit CUB7 989
BMK90000 BMK9 DIN Rail Mount PAX 990
ACCESSORIES
BNA00000 BNA Batteries N Alkaline NL
BNL00000 BNL 3V Lithium Battery NL
BNL10000 BNL 3V Lithium Battery 73
BNL30000 BNL 3V Lithium Battery CR2032 NL
C48 BATCH COUNTERS
C48CB001 C48CB 3 Preset, Reflective, PNP OC 178
C48CB003 C48CB 3 Preset, Reflective, NPN OC, RLY 178
C48CB004 C48CB 3 Preset, Reflective, PNP OC, RLY 178
C48CB005 C48CB 3 Preset, Reflective, NPN OC, SER 178
C48CB008 C48CB 3 Preset, Reflective, NPN OC, RLY, SER 178
C48CB009 C48CB 3 Preset, Reflective, PNP OC, RLY, SER 178
C48CB011 C48CB DC, 3 Preset, Reflective, PNP OC 178
C48CB014 C48CB DC, 3 Preset, Reflective, PNP OC, RLY 178
C48CB100 C48CB 3 Preset, Backlit, NPN OC 178
C48CB101 C48CB 3 Preset, Backlit, PNP OC 178
C48CB103 C48CB 3 Preset, Backlit, NPN OC, RLY 178
C48CB104 C48CB 3 Preset, Backlit, PNP OC, RLY 178
C48CB105 C48CB 3 Preset, Backlit, NPN OC, SER 178
C48CB108 C48CB 3 Preset, Backlit, NPN OC, RLY, SER 178
C48CB109 C48CB 3 Preset, Backlit, PNP OC, RLY, SER 178
C48CB110 C48CB DC, 3 Preset, Backlit, NPN OC 178
C48CB111 C48CB DC, 3 Preset, Backlit, PNP OC 178
C48CB114 C48CB DC, 3 Preset, Backlit, PNP OC, RLY 178
C48CB119 C48CB DC, 3 Preset, Backlit, PNP OC, RLY, SER 178
C48 2 PRESET COUNTER
C48CD002 C48CD 2 Preset, Reflective, RLY 178
C48CD005 C48CD 2 Preset, Reflective, NPN OC, SER 178
C48CD007 C48CD 2 Preset, Reflective, RLY, SER 178
C48CD012 C48CD DC, 2 Preset, Reflective, RLY 178
C48CD015 C48CD DC, 2 Preset, Reflective, NPN OC, SER 178
C48CD017 C48CD DC, 2 Preset, Reflective, RLY, SER 178
C48CD100 C48CD 2 Preset, Backlit, NPN OC 178
C48CD101 C48CD 2 Preset, Backlit, PNP OC 178
C48CD102 C48CD 2 Preset, Backlit, RLY 178
C48CD105 C48CD 2 Preset, Backlit, NPN OC, SER 178
C48CD106 C48CD 2 Preset, Backlit, PNP OC, SER 178
C48CD107 C48CD 2 Preset, Backlit, RLY, SER 178
C48CD110 C48CD DC, 2 Preset, Backlit, NPN OC 178
C48CD111 C48CD DC, 2 Preset, Backlit, PNP OC 178
C48CD112 C48CD DC, 2 Preset, Backlit, RLY 178
C48CD115 C48CD DC, 2 Preset, Backlit, NPN OC, SER 178
C48CD116 C48CD DC, 2 Preset, Backlit, PNP OC, SER 178
C48CD117 C48CD DC, 2 Preset, Backlit, RLY, SER 178
C48 2 PRESET COUNTER w/PRESCALER
C48CP001 C48CP 2 Preset, Reflective, PNP OC 178
C48CP005 C48CP 2 Preset, Reflective, NPN OC, SER 178
C48CP011 C48CP DC, 2 Preset, Reflective, PNP OC 178
C48CP015 C48CP DC, 2 Preset, Reflective, NPN OC, SER 178
C48CP100 C48CP 2 Preset, Backlit, NPN OC 178
PART NO. MODEL
NO. DESCRIPTION CAT
PAGE
C48CP101 C48CP 2 Preset, Backlit, PNP OC 178
C48CP105 C48CP 2 Preset, Backlit, NPN OC, SER 178
C48CP110 C48CP DC, 2 Preset, Backlit, NPN OC 178
C48CP111 C48CP DC, 2 Preset, Backlit, PNP OC 178
C48CP115 C48CP DC, 2 Preset, Backlit, NPN OC, SER 178
C48 1 PRESET COUNTER
C48CS003 C48CS 1 Preset, Reflective, NPN OC, RLY 178
C48CS004 C48CS 1 Preset, Reflective, PNP OC, RLY 178
C48CS013 C48CS DC, 1 Preset, Reflective, NPN OC, RLY 178
C48CS014 C48CS DC, 1 Preset, Reflective, PNP OC, RLY 178
C48CS103 C48CS 1 Preset, Backlit, NPN OC, RLY 178
C48CS104 C48CS 1 Preset, Backlit, PNP OC, RLY 178
C48CS113 C48CS DC, 1 Preset, Backlit, NPN OC, RLY 178
C48CS114 C48CS DC, 1 Preset, Backlit, PNP OC, RLY 178
C48 2 PRESET TIMER
C48TD001 C48TD 2 Preset, Reflective, PNP OC 263
C48TD002 C48TD 2 Preset, Reflective, RLY 263
C48TD005 C48TD 2 Preset, Reflective, NPN OC, SER 263
C48TD007 C48TD 2 Preset, Reflective, RLY, SER 263
C48TD011 C48TD DC, 2 Preset, Reflective, PNP OC 263
C48TD012 C48TD DC, 2 Preset, Reflective, RLY 263
C48TD101 C48TD 2 Preset, Backlit, PNP OC 263
C48TD102 C48TD 2 Preset, Backlit, RLY 263
C48TD105 C48TD 2 Preset, Backlit, NPN OC, SER 263
C48TD106 C48TD 2 Preset, Backlit, PNP OC, SER 263
C48TD107 C48TD 2 Preset, Backlit, RLY, SER 263
C48TD111 C48TD DC, 2 Preset, Backlit, PNP OC 263
C48TD112 C48TD DC, 2 Preset, Backlit, RLY 263
C48TD116 C48TD DC, 2 Preset, Backlit, PNP OC, SER 263
C48TD117 C48TD DC, 2 Preset, Backlit, RLY, SER 263
C48 1 PRESET TIMER
C48TS003 C48TS 1 Preset, Reflective, NPN OC, RLY 263
C48TS004 C48TS 1 Preset, Reflective, PNP OC ,RLY 263
C48TS013 C48TS DC, 1 Preset, Reflective, NPN OC, RLY 263
C48TS014 C48TS DC, 1 Preset, Reflective, PNP OC ,RLY 263
C48TS103 C48TS 1 Preset, Backlit, NPN OC, RLY 263
C48TS104 C48TS 1 Preset, Backlit, PNP OC ,RLY 263
C48TS113 C48TS DC, 1 Preset, Backlit, NPN OC, RLY 263
C48TS114 C48TS DC, 1 Preset, Backlit, PNP OC ,RLY 263
CABLE ASSEMBLIES
CBJ11A07 CBJ RJ11 w/7 ft unterminated cable NL
CBJ11BD5 CBJ 6" RJ11 Jumper Cable NL
CBJ11C07 CBJ DLCD RJ11 to RJ45 NL
CBLxxxxx CBL Communication Cables NL
CBLPROG0 CBL Programming Cable for CS, G3, & Paradigm NL
CBLRLCxx CBL Interface Cables NL
CBLSIE03 CBL Comm. Cable Siemens MPI w/Adapter NL
CBLTEL00 CBL G3 Telemechanique RS485 NL
CBLUSB00 CBL Cable USB Type A-B NL
CBLUSB01 CBL Cable USB Type A-Mini B NL
CBLUSB23 CBL USB Serial Adaptor RS-232 NL
CBPRO007 DLC RJ11 Program & Interface Cable NL
CCA3PC00 LMP 3-Cond. 3-Pin w/10 ft Cable 825
NOTE
NL = Available, but not listed in the catalog.
See the support section of our website.
Revised 01/01/2009

N
1018 www.redlion.net
PART NO. MODEL
NO. DESCRIPTION CAT
PAGE
CCA3PC25 LMP 3-Cond. 3-Pin w/25 ft Cable 825
CCA3PC50 LMP 3-Cond. 3-Pin w/50 ft Cable 825
CCA3PC99 LMP 3-Cond. 3-Pin w/Special Length Cable 825
CCARPG00 Mating, 6-Pin MS Connector NL
CCARPG01 4-Cond. 6-Pin w/10ft Cable 851
CCARPG25 4-Cond. 6-Pin w/25 ft Cable 851
CCARPG50 4-Cond. 6-Pin w/50 ft Cable 851
CCARPG99 4-Cond. 6-Pin w/Special Length Cable 851
CCBRPG00 7-Pin Connector NL
CCBRPG01 6-Cond. 7-Pin w/10 ft Cable 838
CCBRPG02 7-Pin Connector with 10 ft Cable - S159 NL
CCBRPG03 7-Pin Connector with 20 ft Cable - S159 NL
CCBRPG04 10-Pin Connector NL
CCBRPG05 10-Pin Connector with 10 ft Cable NL
CCBRPG06 10-Pin Connector with 20 ft Cable NL
CCBRPG99 6-Cond. 7-Pin w/Special Length Cable 838
CCM12890 10 Meter 8-Pin 5-wire M12 Cable/Connector 851
CCM12894 4 Meter 8-Pin 5-wire M12 Cable/Connector 851
CCM12S01 M12 Cable Assembly, 1 M, Shielded 851
CCM12S06 M12 Cable Assembly, 6 M, Shielded 851
CCM12U02 4 Wire Unshielded, 2 M, Cable/Connector 868
CCMPE000 CCMPE Pico Quick Disconnect Cable 861
X Special Length - Not stocked at factory, add $17.00 setup charge for each
different length, plus $0.40/ft over 10 ft.
PARADIGM OPERATOR INTERFACE PANELS
CL010000 CL01 LCD, 2X20, 128 K Memory NL
CL010010 CL01 LCD, 2X20, XRAM, 512 K Memory NL
CL010050 CL01 LCD 2X20 w/Banner Presence 128 K Memory NL
CL010060 CL01 LCD 2x20 w/Banner Presence 512 K Memory NL
CL050000 CL05 LCD, 2X20, 128 K Memory NL
CL050010 CL05 LCD, 2X20, 512 K Memory NL
CL200000 CL20 LCD, 4X20, 128 K Memory NL
CL200010 CL20 LCD, 2X40, 512 K Memory NL
CL400000 CL40 LCD, 2X40, 128 K Mem w/Numeric Keypad NL
CL400010 CL40 LCD, 2X40, XRAM, 256 K Mem w/Num. Key NL
ACCESSORIES
COS10000 COS1 Clock Oscillator NL
MODULAR CONTROLLER SERIES
CSBASE00 Replacement Base NL
CSDIO14R CSDIO Eight Inputs, Six Relay Outputs 54
CSDIO14S CSDIO Eight Inputs, Six Solid State Outputs 54
CSINI800 CSINI 8 Channel 0(4)-20 mA Input Module 52
CSINI8L0 CSINI 8 Chan 0(4)-20 mA Input Mod 100 Linearizer 52
CSINV800 CSINV 8 Channel ±10 V Input Module 52
CSINV8L0 CSINV 8 Chan ±10 V Input Mod 100 Linearizer 52
CSMSTRGT CSMSTR Master, Data Logger, Full VGA Virtual HMI 46
CSMSTRLE CSMSTR Master, Multiple Protocol Cnvtr, Ethernet 44
CSMSTRSX CSMSTR Master, Data Logger, Virtual HMI 46
CSMSTRV2 CSMSTR Master, Comms, Ethernet 42
CSOUT400 CSOUT 4 Channel Analog Output 56
CSPID1R0 CSPID Single Loop Module, Relay Outputs 48
CSPID1RA CSPID Single Loop Module, Relay Outputs, Analog 48
CSPID1RM CSPID Single Loop Module, Relay Outputs, HCM 48
PART NO. MODEL
NO. DESCRIPTION CAT
PAGE
CSPID1S0 CSPID Single Loop Module, Solid State Outputs 48
CSPID1SA CSPID Single Loop Module, Solid State Out. Analog 48
CSPID1SM CSPID Single Loop Module Solid State, HCM 48
CSPID1TA CSPID Single Loop Module, Triac Outputs, Analog 48
CSPID2R0 CSPID2 Dual Loop Module, Relay Outputs 48
CSPID2RM CSPID2 Dual Loop Module, Relay Outputs, HCM 48
CSPID2S0 CSPID2 Dual Loop Module, Solid State Outputs 48
CSPID2SM CSPID2 Dual Loop Module, Solid State Outputs, HCM 48
CSPID2T0 CSPID2 Dual Loop Module, Triac Outputs 48
CSPID2TM CSPID2 Dual Loop Module, Triac Outputs, HCM 48
CSRTD600 CSRTD 6 Channel Input, RTD 52
CSSG10RA CSSG1 Single Loop, 1 SG Input, Rly Outpts, Analog 50
CSSG10SA CSSG1 Single Loop, 1 SG Input, Solid State Out, Anlg 50
CSSG11RA CSSG1 Single Loop, 2 SG Inpts, Rly Outpts, Analog 50
CSSG11SA CSSG1 Single Loop, 2 SG Inpts, Solid State Out, Anlg 50
CSTC8000 CSTC 8 Channel Thermocouple Module 52
CSTERM00 Replacement Termination Plug NL
CURRENT TRANSFORMERS
CT004001 40 : 0.1A for use with TCU/PCU, & P48/T48 882
CT005001 50 : 0.1A for use with TCU/PCU, & P48/T48 881
CT005050 50 : 5A for use with IMH/APLIT 881
CT020050 200 : 5A for use with IMH/APLIT 881
DC CURRENT TRANSDUCER
CTD00000 DC/DC, Split Case 883
AC CURRENT TRANSDUCERS
CTL0052S 5A/4-20ma, Split Case 885
CTL0501F 50A/10VDC, Fixed Case 885
CTL0502F 50A4-20mA,Fixed Case 885
CTL0502S 50A/4-20ma, Split Case 885
CTL2001F 200A/10VDC, Fixed Case 885
CTL2002F 200A/4-20ma, Fixed Case 885
CTL2002S 200A/4-20ma, Split Case 885
TRUE RMS AC CURRENT TRANSDUCERS
CTR05000 50A/4-20ma, Split Case 887
CTR20000 200A/4-20ma, Split Case 887
CURRENT OPERATED SWITCHES
CTSF0000 Current Switch, Fixed Case 889
CTSG0000 Current Switch, GO/NO GO 889
CTSS0000 Current Switch, Split Case 889
CUB 1 MINIATURE COUNTERS
CUB10000 CUB1 Counter NL
CUB1XP00 CUB1XP XP Version NL
CUB 2 MINIATURE COUNTERS
CUB20000 CUB2 Counter NL
CUB2L000 CUB2L Counter w/Lithium Battery NL
CUB2L800 CUB2L8 8-Digit Counter w/Lithium Battery NL
CUB2LQ00 CUB2LQ0 Quadrature Cntr w/Lithium Battery NL
CUB2LQ10 CUB2LQ1 Quad 1st Dec Pnt Cntr w/Lithm Bat NL
CUB2LQ20 CUB2LQ2 Quad 2nd Dec Pnt Cntr w/Lithm Bat NL
CUB2LU00 CUB2LU Up/Down Counter w/Lithium Battery NL
CUB2XP00 CUB2XP XP Version NL
CUB 3 MINIATURE INDICATORS
CUB30000 CUB3 Counter NL
CUB3L000 CUB3L Counter w/Lithium Battery NL
CUB3LR00 CUB3LR Cntr w/Lithium Batt & Remote Reset NL
CUB3R000 CUB3R Counter w/Remote Reset NL
NOTE
NL = Available, but not listed in the catalog.
See the support section of our website.
Revised 01/01/2009

N
10191-717-767-6511
PART NO. MODEL
NO. DESCRIPTION CAT
PAGE
CUB 3T MINIATURE TIMERS W/LITHIUM BATTERY
CUB3T300 CUB3T 1 hr; Remote Reset NL
CUB3T310 CUB3T 0.1 hr; Remote Reset NL
CUB3T320 CUB3T 0.01 hr; Remote Reset NL
CUB3T330 CUB3T 0.1 min; Remote Reset NL
CUB3T400 CUB3T 1 hr; Front Panel & Remote Reset NL
CUB3T410 CUB3T 0.1 hr; Front Panel & Remote Reset NL
CUB3T420 CUB3T 0.01 hr; Front Panel & Remote Reset NL
CUB3T430 CUB3T 0.1 min; Front Panel & Remote Reset NL
CUB 4 SERIES
CUB4CL10 CUB4CL Current Loop w/Yel/Grn Neg Backlighting 406
CUB4CL20 CUB4CL Current Loop w/Red Neg Backlighting 406
CUB4CL30 CUB4CL Current Loop w/Yel/Grn Pos Backlighting 406
CUB4CL40 CUB4CL Current Loop w/Red Pos Backlighting 406
CUB4I000 CUB4I DC Current Meter, Reflective Display 305
CUB4I010 CUB4I DC Current Meter w/Yel/Grn Backlighting 305
CUB4I020 CUB4I DC Current Meter w/Red Backlighting 305
CUB4L000 CUB4L Counter, Reflective Display 98
CUB4L010 CUB4L Counter w/Yel/Grn Backlighting 98
CUB4L020 CUB4L Counter w/Red Backlighting 98
CUB4L800 CUB4L8 8-Digit Counter, Reflective Display 98
CUB4L80M CUB4L8 8-Digit Counter, Reflective w/V+ Terminal 98
CUB4L810 CUB4L8 8-Digit Counter w/Yel/Grn Backlighting 98
CUB4L820 CUB4L8 8-Digit Counter w/Red Backlighting 98
CUB4L8W0 CUB4L8W 8-Digit Counter Positive Reflective 98
CUB4L8W1 CUB4L8W 8-Digit Counter w/Yel/Grn Backlighting 98
CUB4L8W2 CUB4L8W 8-Digit Counter w/Red Backlighting 98
CUB4L8WM CUB4L8W 8-Digit Counter w/V+ Terminal 98
CUB4LM00 CUB4LM 6-Digit Counter w/V+ Terminal 98
CUB4LP00 CUB4LP Loop Pwrd Process Meter, Reflective 406
CUB4LP40 CUB4LP Loop Pwrd Process Meter, Red Backlighting 406
CUB4 TEMPERATURE INDICATORS
CUB4RT00 CUB4RT RTD Input, Reflective NL
CUB4RT20 CUB4RT RTD Input, Red Backlighting NL
CUB 4 SERIES
CUB4V000 CUB4V DC Voltmeter 305
CUB4V010 CUB4V DC Voltmeter w/Yel/Grn Backlighting 305
CUB4V020 CUB4V DC Voltmeter w/Red Backlighting 305
CUB 5 SERIES
CUB5B000 CUB5 Dual Count & Rate Indicatr w/Bklght Display 102
CUB5R000 CUB5 Dual Count & Rate Indicatr w/Reflctve Dsply 102
CUB5COM1 RS485 Serial Communication Card 932
CUB5COM2 RS232 Serial Communication Card 932
CUB5IB00 CUB5I DC Current Meter with Red/Green Backlight 317
CUB5IR00 CUB5I DC Current Meter with Reflective Display 317
CUB5PB00 CUB5P Process Meter with Red/Green Backlight 410
CUB5PR00 CUB5P Process Meter with Reflective Display 410
CUB5RLY0 Single Relay Option Card 102
CUB5RTB0 CUB5RT RTD Meter with Red/Green Backlight 501
CUB5RTR0 CUB5RT RTD Meter with Reflective Display 501
CUB5SNK0 Dual Sinking Open Collector Output Card 102
CUB5TB00 CUB5T Preset Timer & Cycle Counter w/Bklght Dsply 249
CUB5TCB0 CUB5TC Thermocouple Meter with Red/Green Bcklght 489
CUB5TCR0 CUB5TC Thermocouple Meter with Reflective Display 489
CUB5TR00 CUB5T Preset Timr & Cycle Countr w/Reflctve Dsply 249
CUB5USB00 USB Option Card 930
PART NO. MODEL
NO. DESCRIPTION CAT
PAGE
CUB5VB00 CUB5V DC Voltmeter with Red/Green Backlight 305
CUB5VR00 CUB5V DC Voltmeter with Reflective Display 305
CUB 7 MINIATURE COUNTERS AND TIMERS
CUB70000 CUB7 8-Digit Counter, Reflective Display 73
CUB70010 CUB7 8-Digit Counter w/Yel/Grn Backlghtng 73
CUB70020 CUB7 8-Digit Counter w/Red Backlighting 73
CUB7P000 CUB7P 8-Digit Counter, Contact, Reflective Display 85
CUB7P010 CUB7P 8-Digit Counter, Contact, Green Backlight 85
CUB7P020 CUB7P 8-Digit Counter, Contact, Red Backlighting 85
CUB7P100 CUB7P 8-Digit Counter, Voltage, Reflective Display 90
CUB7P110 CUB7P 8-Digit Counter, Voltage, Green Backlight 90
CUB7P120 CUB7P 8-Digit Counter, Voltage, Red Backlighting 90
CUB7P200 CUB7P 8-Digit Counter, Logic, Reflective Display 85
CUB7P210 CUB7P 8-Digit Counter, Logic, Green Backlight 85
CUB7P220 CUB7P 8-Digit Counter, Logic, Red Backlighting 85
CUB7P300 CUB7P 8-Digit Counter, Low Volt Reflective Disply 94
CUB7P310 CUB7P 8-Digit Counter, Low Volt, Green Backlight 94
CUB7P320 CUB7P 8-Digit Counter, Low Volt, Red Backlight 94
CUB7T000 CUB7T 8-Digit Timer, Contact, Reflective Display 237
CUB7T010 CUB7T 8-Digit Timer, Contact, Green Backlighting 237
CUB7T020 CUB7T 8-Digit Timer, Contact, Red Backlighting 237
CUB7T100 CUB7T 8-Digit Timer, Voltage, Reflective Display 241
CUB7T110 CUB7T 8-Digit Timer, Voltage, Green Backlighting 241
CUB7T120 CUB7T 8-Digit Timer, Voltage, Red Backlighting 241
CUB7T300 CUB7T 8-Digit Timer, Low Volt, Reflective Display 245
CUB7T310 CUB7T 8-Digit Timer, Low Volt, Green Backlight 245
CUB7T320 CUB7T 8-Digit Timer, Low Volt, Red Backlighting 245
CUB7W000 CUB7W 8-Digit Counter Positive Reflective 77
CUB7W010 CUB7W 8-Digit Counter w/Yel/Grn Backlighting 77
CUB7W020 CUB7W 8-Digit Counter w/Red Backlighting 77
CUB7W300 CUB7W 8-Digit Counter, Low Volt, Reflective Display 81
CUB7W310 CUB7W 8-Digit Counter, Low Volt, Green Backlight 81
CUB7W320 CUB7W 8-Digit Counter, Low Volt, Red Backlight 81
PARADIGM OPERATOR INTERFACE PANELS
CX200000 CX200 VFD, 4X20, 128 K Memory NL
CX200010 CX200 VFD, 4X20, 256 K Memory NL
DUAL LOOP CONTROLLER
DLC00001 DLC Dual Loop Controller with Dual Isolation 64
DLC01001 DLC Dual Isolated Controller with 2 Analog Out. 64
DLC11001 DLC Setpoint Controller with 2 Analog Outputs 64
DLCD0001 DLCD Dual Loop Controller with DH-485 64
DLCD1001 DLCD Dual Loop Cont. w/2 Anlg Out w/DH-485 64
DLCN0001 DLCN Dual Loop Cont. w/DeviceNet, M12 64
DLCN0011 DLCN Dual Loop Cont. w/DeviceNet, Combicon 64
DLCN1001 DLCN Dual Loop, w/DeviceNet, 2 Anlg Out, M12 64
DLCN1011 DLCN Dual Loop, w/DeviceNet, 2 Anlg, Combicon 64
DLCN1101 DLCN Setpoint Cont., DeviceNet, w/2 Anlg., M12 64
DLCN1111 DLCN Setpoint Cont., DeviceNet, w/2 Anlg., Comb. 64
DIGITAL PANEL METERS
DP5D0000 DP5D Universal DC Input, AC Powered 358
DP5D0010 DP5D Universal DC Input, DC Powered 358
DP5P0000 DP5P Process Input, AC Powered 358
DP5P0010 DP5P Process Input, DC Powered 358
NOTE
NL = Available, but not listed in the catalog.
See the support section of our website.
Revised 01/01/2009

N
1020 www.redlion.net
PART NO. MODEL
NO. DESCRIPTION CAT
PAGE
DP5T0000 DP5T Thermocouple/RTD Input, AC Powered 358
DP5T0010 DP5T Thermocouple/RTD Input, DC Powered 358
ADAPTER
DRRJ11T6 DLC RJ11 to Terminal Adapter NL
DRRJ45P6 RJ45 Parallel Connector NL
DRRJ45T8 RJ45 to Terminal Adapter NL
DATA STATION PLUS
DSPGT000 DSP Protocol Cnvtr, Data Logger, VGA Virtual HMI 40
DSPLE000 DSP Protocol Cnvtr, Comms, Ethernet 40
DSPSX000 DSP Protocol Cnvtr, Data Logger, Virtual HMI 40
DIGITAL TACHOMETERS
DT800000 DT8 Adjustable Time Base Tachometer 205
DT800010 DT8 Adj. Time Base Tach. w/Yel/Grn Bklg. 205
DT800020 DT8 Adj. Time Base Tach. w/Red Bklghtng. 205
DT900000 DT9 Not Available Contact Technical Sales CALL
DT900010 DT9 Not Available Contact Technical Sales CALL
DT900020 DT9 Not Available Contact Technical Sales CALL
PHOTO-ELECTRIC EMITTER SENSOR
EMDC0000 EMDC (Opposed Beam Pair), DC Powered 861
EMMDC000 PRM/RRM DC Emitter (Opposed Beam Pair)w/Cable 865
EMMDC001 PRM/RRM DC Emitter (Opposed Beam Pair)w/Pico Conn. 865
ENCLOSURES
ENC10000 Small Utility Enclosure, NEMA 1 NL
ENC11000 1/16 DIN ENCLOSURE, NEMA 4 981
ENC12000 EPAX 6 Enclosure, NEMA 4 983
ENC20000 Large Utility Enclosure, NEMA 1 NL
ENC30000 Libra/Lynx Enclosure, NEMA 1 NL
ENC40000 Libra Series Enclosure, NEMA 4 971
ENC50000 Apollo Series Enclosures, NEMA 4 971
ENC5A000 PAX Enclosure, NEMA 4 973
ENC5B000 Fiberglass Enclosure for 1 PAX unit 973
ENC5C000 Fiberglass Enclosure for 2 PAX units 973
ENC60000 Gemini Series Enclosures, NEMA 4 971
ENC70000 LDD Enclosures, NEMA 4 NL
ENC80000 CUB4/5, DT7 NEMA 4 975
ENC8A000 CUB4/5, DT8 NEMA 4X Fiberglass 975
ENC8B000 CUB 4/5, DT8 NEMA 4X, use with MLPS 975
ENC90000 LPAX Enclosure, NEMA 4 979
EXTRA LARGE PAX PANEL METER
EPAX0500 EPAX5 5-Digit Extra Large Display Module Analog 694
EPAX0600 EPAX6 6-Digit Extra Large Display Module Digital 700
EPAXENSH NEMA 4/IP65 Enclosure and Shroud 983
EPAXPGM0 Programming Remote w/10 ft cable 700
FERRITE SUPPRESSION CORE
FCOR0000 FCOR Ferrite Suppression Core 965
G3 OPERATOR INTERFACE PANELS
G303M000 G303 LCD, 128 x 64 Indoor 17
G303S000 G303 LCD, 128 x 64 Outdoor 17
G304K000 Kadet 4.3 inch TFT 31
G306A000 G306 LCD 320 X 240 Indoor, 5 button keypad TFT 21
G306C000 G306 Replaced by G306A000 CALL
G306K000 Kadet 6 inch TFT 33
G308A000 G308 LCD, TFT, 640 X 480, Indr, 7 button keypad 25
PART NO. MODEL
NO. DESCRIPTION CAT
PAGE
G308C000 G308 LCD, DSTN, 640 X 480 Indr, 7 button keypad 23
G308K000 Kadet 8 inch TFT 35
G310C000 G310 LCD, 640 X 480 Indoor, 8 button keypad 27
G310S000 G310 LCD, 640 x 480 Outdoor, 8 button keypad 27
G315C000 G315 LCD, 1024 X 768 Indoor, 10 button keypad 29
G3BFDM00 BFD Big Flexible Display - Red for G303 62
G3BFDNEM BFD Big Flexible Display NEMA 4 Option 62
G3BR08A0 G308A Backlight Assembly NL
G3BR10C0 G310C Backlight Assembly NL
G3BR10C1 G310C Backlight Assembly NL
G3BR10S0 G310S Backlight Assembly NL
G3CF064M 64 MB CompactFlash Card NL
G3CF256M 256 MB CompactFlash Card NL
G3CF512M 512 MB CompactFlash Card NL
G3CN0000 G3CN G3 CANopen Option Card 37
G3DN0000 G3DN G3 DeviceNet Option Card 38
G3FILM03 Pck of ten prtctve films for G303M or G303S NL
G3FILM06 Pck of ten prtctve films for G306 NL
G3FILM08 Pck of ten prtctve films for G308 or G308A NL
G3FILM10 Pck of ten prtectve films for G310M or G310S NL
G3FILM15 Pck of ten prtectve films for G315 NL
G3FILM4K Pack of ten protective films for G304K NL
G3FILM6K Pack of ten protective films for G306K NL
G3FILM8K Pack of ten protective films for G308K NL
G3GSM000 GSM/GPRS Modem Option Card for G3 39
G3PBDP00 G3PB G3 Profibus Option Card 38
G3QANT00 Quad-band GSM/GPRS cellular antenna 39
G3RS0000 G3RS G3 RS232/485 Option Card 37
CONVERTER MODULES
GCM23201 GCM232 Serial Converter RS232 NL
GCM42201 GCM422 Serial Converter RS422 NL
GEMINI SERIES
GEM10060 GEM1 w/Relay, 115/230V NL
GEM20060 GEM2 w/Relay, 115/230V NL
GEM20160 GEM2 w/Relay & Current Loop, 115/230V NL
GEM33060 GEM33 w/Relay, 115/230V NL
GEM33160 GEM33 w/Relay & Current Loop, 115/230V NL
GEM41060 GEM41 w/Relay, 115/230V NL
GEM41160 GEM41 w/Relay & Current Loop, 115/230V NL
GEM42060 GEM42 w/Relay, 115/230V NL
GEM42160 GEM42 w/Relay & Current Loop, 115/230V NL
GEM52060 GEM52 w/Relay, 115/230V NL
GEM52160 GEM52 w/Relay & Current Loop, 115/230V NL
PARADIGM OPERATOR INTERFACE PANELS
GL350000 GL350 Replaced with GL350VF0 CALL
GL350010 GL350 Replaced with GL350VF1 CALL
GL350VF0 256 x 128 VFD DISPLAY 256 K Memory NL
GL350VF1 256 x 128, XRAM VFD DISPLAY 768 K Memory NL
GRAPHICAL TANK MONITOR
GTM10080 GTM 10" Display 8 Tank NL
GTM1008S GTM 10" Display 8 Tank, Preconfigured Comm NL
HALL EFFECT SENSOR
HESS0000 HESS Hall Effect Sensor 827
MISCELLANEOUS
HHT00000 HHT LCD Hand Held Contact Tachometer 231
HHTCONC0 HHT Concave Disc 231
NOTE
NL = Available, but not listed in the catalog.
See the support section of our website.
Revised 01/01/2009

N
10211-717-767-6511
PART NO. MODEL
NO. DESCRIPTION CAT
PAGE
HHTCONE0 HHT Cone Point Disc w/Shaft 231
HHTP0000 HHTP LCD Hand Held Photo Tachometer 231
HHTRT000 HHTP Replacment 4x24 Reflect Tape 231
HHTWHL00 HHT Rubber Wheel 231
ACCESSORIES
HWK10000 HWK1 Hardware Kit, CUB 2 NL
HWK20000 HWK2 Hardware Kit, CUB 2 NL
HWK28000 HWK28 Bezel Kit, SCUB28 896
HWK30000 HWK3 Bezel Kit, SUB CUB 2, SSCUB 2 895
HWK40000 HWK4 Bezel Evaluation Kit, SUB CUB 2 895
HWK50000 HWK5 Bezel Kit, SSCUB 2 NL
HWK60000 HWK6 Bezel Kit, SCUBD 897
HWK70000 HWK7 MDM Cable Assembly 899
DIN RAIL MODULES
IAMA0006 IAMA6 Configurable 3-Way Isolating Amplifier 750
IAMA3535 IAMA Universal Signal Conditioning 742
IAMA6262 IAMA Universal Signal Conditioning Square Root 742
IAMS0001 IAMS IAMS with analog 731
IAMS0010 IAMS IAMS with setpoint 731
IAMS0011 IAMS IAMS with analog and setpoint 731
IAMS3535 IAMS Smart Setpoint Analog Module NL
ACCESSORIES
ICA00000 ICA Spare Input Connector NL
ICAXP000 ICAXP Spare Input Conn. XP Version NL
DIN RAIL MODULES
ICM40030 ICM4 RS232/RS485 Converter 788
ICM50000 ICM5 3 way Isolated RS232/RS485 Converter 792
ICM80000 ICM8 Ethernet Gateway 796
IFMA0035 IFMA Frequency to Analog Converter, DC Powered 713
IFMA0065 IFMA Frequency to Analog Converter, AC Powered 713
IFMR0036 IFMR Speed Switch, DC Powered 721
IFMR0066 IFMR Speed Switch, AC Powered 727
INDUCTIVE LOAD SUPPRESSORS
ILS11500 ILS1 115VAC 966
ILS23000 ILS2 230VAC 966
INTELLIGENT SERIAL SLAVE DISPLAY
IMA04161 IMA Base Unit, 115/230VAC NL
IMA04164 IMA w/Alarms, 115/230VAC NL
INTELLIGENT DECADE METER FOR VOLTAGE INPUTS
IMD10060 IMD1 Base Unit, 115/230VAC NL
IMD10160 IMD1 w/Exc, 115/230VAC NL
IMD10162 IMD1 w/Exc & Alarms, 115/230VAC NL
IMD13160 IMD1 w/Exc & Sw, 115/230VAC NL
IMD13161 IMD1 w/Exc, Sw, & Serial, 115/230VAC NL
IMD13162 IMD1 w/Exc, Sw & Alarms, 115/230VAC NL
IMD13163 IMD1 w/Exc, Sw & Analog, 115/230VAC NL
IMD13167 IMD1 w/Exc, Sw, Alarms, Ser, & Anlg 115/230VAC NL
IMD13169 IMD1 w/Exc, Sw, Alrms, Ser, & V Anlg 115/230VAC NL
INTELLIGENT DECADE METER FOR CURRENT INPUTS
IMD20060 IMD2 Base Unit, 115/230VAC NL
IMD20160 IMD2 w/Exc, 115/230VAC NL
IMD20162 IMD2 w/Exc & Alarms, 115/230VAC NL
IMD23160 IMD2 w/Exc & Sw, 115/230VAC NL
IMD23161 IMD2 w/Exc, Sw, & Serial, 115/230VAC NL
IMD23162 IMD2 w/Exc, Sw & Alarms, 115/230VAC NL
IMD23163 IMD2 w/Exc, Sw & Analog, 115/230VAC NL
PART NO. MODEL
NO. DESCRIPTION CAT
PAGE
IMD23167 IMD2 w/Exc, Sw, Alrms, Ser, & Anlog 115/230VAC NL
IMD23169 IMD2 w/Exc, Sw, Alrms, Ser, & V Anlg 115/230VAC NL
INTELLIGENT METER FOR 5-AMP AC INPUTS
IMH40060 IMH Base Unit, 115/230VAC NL
IMH40062 IMH w/Alarms, 115/230VAC NL
IMH43060 IMH w/Software (Sw), 115/230VAC NL
IMH43062 IMH w/Software, & Alarms, 115/230VAC NL
IMH43066 IMH w/Software, Alarms, & Analog, 115/230VAC NL
IMH43068 IMH w/Exc, Sw, Alrms, Ser, & V Anlg 115/230VAC NL
INTELLIGENT METER FOR DIGITAL RATE INPUTS
IMI04160 IMI Base Unit, 115/230VAC NL
IMI04161 IMI w/Serial, 115/230VAC NL
IMI04162 IMI w/Alarm, 115/230VAC NL
IMI04163 IMI w/Analog, 115/230VAC NL
IMI04167 IMI w/Alarms, Serial, & Analog, 115/230VAC NL
IMI04169 IMI w/Exc, Alarms, Serial, & V Anlg 115/230VAC NL
INTELLIGENT METER FOR PROCESS INPUTS
IMP20060 IMP Base unit, 115/230VAC NL
IMP20160 IMP w/Exc, 115/230VAC NL
IMP20162 IMP w/Exc & Alarms, 115/230VAC NL
IMP23160 IMP w/Exc & Sw, 115/230VAC NL
IMP23161 IMP w/Exc, Sw, & Serial, 115/230VAC NL
IMP23162 IMP w/Exc, Sw, & Alarms, 115/230VAC NL
IMP23163 IMP w/Exc, Sw, & Analog, 115/230VAC NL
IMP23167 IMP w/Exc, Sw, Alrms, Serial, Anlg 115/230VAC NL
IMP23169 IMP w/Exc, Sw, Alrms, Serial, V Anlg 115/230VAC NL
INTELLIGENT METER FOR RTD INPUTS
IMR00160 IMR Base unit, 115/230VAC NL
IMR00162 IMR w/Alarms, 115/230VAC NL
IMR02160 IMR w/Sw, 115/230VAC NL
IMR02161 IMR w/Sw & Serial, 115/230VAC NL
IMR02162 IMR w/Sw & Alarms, 115/230VAC NL
IMR02163 IMR w/Sw & Analog, 115/230VAC NL
IMR02167 IMR w/Sw, Alrms, Serial, & Anlg 115/230VAC NL
IMR02169 IMR w/Sw, Alrms, Serial, & V Anlg 115/230VAC NL
INTELLIGENT METER FOR STRAIN GAGE INPUTS
IMS03160 IMS Base unit, 115/230VAC NL
IMS03162 IMS w/Alarms, 115/230VAC NL
IMS03164 IMS w/Alarms & Serial, 115/230VAC NL
IMS03166 IMS w/Alarms & Analog, 115/230VAC NL
IMS03168 IMS w/Alarms,& V Analog 115/230VAC NL
INTELLIGENT METER FOR THERMOCOUPLE INPUTS
IMT00060 IMT Base unit, 115/230VAC NL
IMT00062 IMT w/Alarms, 115/230VAC NL
IMT02060 IMT w/Sw, 115/230VAC NL
IMT02061 IMT w/Sw & Serial, 115/230VAC NL
IMT02062 IMT w/Sw & Alarms, 115/230VAC NL
IMT02063 IMT w/Sw & Analog, 115/230VAC NL
IMT02067 IMT w/Sw, Alrms, Serial, & Analog 115/230VAC NL
IMT02069 IMT w/Sw, Alrms, Serl, & V Analog 115/230VAC NL
INTELLIGENT METER FOR THERMISTOR INPUTS
IMY00160 IMY Base unit, 115/230VAC NL
IMY00162 IMY w/Alarms, 115/230VAC NL
NOTE
NL = Available, but not listed in the catalog.
See the support section of our website.
Revised 01/01/2009

N
1022 www.redlion.net
PART NO. MODEL
NO. DESCRIPTION CAT
PAGE
IMY02160 IMY w/Sw, 115/230VAC NL
IMY02161 IMY w/Sw & Serial, 115/230VAC NL
IMY02162 IMY w/Sw & Alarms, 115/230VAC NL
IMY02163 IMY w/Sw & Analog, 115/230VAC NL
IMY02167 IMY w/Sw, Alrms, Serial, & Analog 115/230VAC NL
IMY02169 IMY w/Sw, Alrms, Serial, & V Anlg, 115/230VAC NL
DIN RAIL MODULE
IRMA2003 IRMA Intelligent RTD, Loop Powered 763
IRMA3035 IRMA Intelligent RTD, DC Powered 769
ITMA2003 ITMA Intelligent Thermocouple, Loop Powered 775
ITMA3035 ITMA Intelligent Thermocouple, DC Powered 782
ITMS4037 ITMS Smart Thermocouple to MODBUS w/Alarms NL
LOGIC CONVERTER MODULE
LCM10000 LCM1 Logic Converter Module 917
LARGE DISPLAYS
LD200400 2.25" High 4-Digit Red LED Counter 629
LD200600 2.25" High 6-Digit Red LED Counter 629
LD2006P0 2.25" 6-Dgt LED Cnt/Rte w/Rly Out & Srl Com 629
LD2A05P0 2.25" High 4-Digit Red LED Analog 659
LD2SS6P0 2.25" High 6-Digit Serial Slave Display 674
LD2T06P0 2.25" 6-Dgt Red LED Tmr w/Rly Out & Srl Com 645
LD400400 4" High 4-Digit Red LED Counter 629
LD400600 4" High 6-Digit Red LED Counter 629
LD4006P0 4" 6-Digit LED Cnt/Rte w/Rly Out & Srl Com 629
LD4A05P0 4" High 5 1/2 Digit Red LED Analog 659
LD4SS6P0 4" High 6-Digit Red LED Serial Slave Display 674
LD4T06P0 4" 6-Dgt Red LED Tmr w/Rly Out & Srl Com 645
LARGE DIGIT DISPLAYS
LDD00400 LDD 4-Digit, 115/230 VAC w/Red Display NL
LDD00600 LDD 6-Digit, 115/230 VAC w/Red Display NL
LDD0G400 LDD 4-Digit, 115/230 VAC w/Green Display NL
LDD0G600 LDD 6-Digit, 115/230 VAC w/Green Display NL
LINEAR ENCODER
LES1050S LE Discontinued. Replaced with ZLZ0050G CALL
LES1500S LE Discontinued. Replaced with ZLZ0500G CALL
LEMTBR00 ZLZ Mouting Bracket 859
LINE FILTER
LFIL0000 LFIL General Purpose Line FIlter 968
LEGEND COUNTER/RATE INDICATOR SERIES
LGB00000 LGB Four Preset Batch, w/Yel/Grn Bkltng 187
LGB00100 LGB Four Preset Batch, w/Red Bkltng 187
LGD00000 LGD Dual Prst, w/Yel/Grn Bkltng, & Relay 187
LGD00001 LGD Dual Preset, w/Yel/Grn Backlighting 187
LGD00100 LGD Dual Preset, w/Red Bklt, & Relay 187
LGD00101 LGD Dual Preset, w/Red Backlighting 187
LGM00001 LGM Multi Preset (6), w/Yel/Grn Bkltng 187
LGM00101 LGM Multi Preset (6), w/Red Backlighting 187
LGPB0000 LGPB 4 Preset Batch w/Green Backlight 193
LGPB0100 LGPB 4 Preset Batch w/Red Backlight 193
LGPB0200 LGPB 4 Preset Batch w/Dual Color Backlight 193
LGPBF100 LGPBF Foot/Inch Counter 193
LGPM0001 LGPM 6 Multi Preset w/Green Backlight 193
LGPM0101 LGPM 6 Multi Preset w/Red Backlight 193
PART NO. MODEL
NO. DESCRIPTION CAT
PAGE
LGPM0201 LGPM 6 Multi Preset w/Dual Color Backlight 193
LGS00000 LGS Single Preset, w/Yel/Grn Bklt & Relay 187
LGS00001 LGS Single Preset, w/Yel/Grn Backlighting 187
LGS00100 LGS Single Preset, w/Red Bklt, & Relay 187
LGS00101 LGS Single Preset, w/Red Backlighting 187
LIBRA SERIES
LIBC1000 LIBC1 Single Preset LCD Cntr, 115V NL
LIBC1010 LIBC1 Single Preset LCD Cntr, 230V NL
LIBC1E00 LIBC1E Single Preset LED Cntr, 115V NL
LIBC1E10 LIBC1E Single Preset LED Cntr, 230V NL
LIBC2000 LIBC2 Dual Preset LCD Cntr, 115V NL
LIBC2010 LIBC2 Dual Preset LCD Cntr, 230V NL
LIBC2E00 LIBC2E Dual Preset LED Cntr, 115V NL
LIBC2E10 LIBC2E Dual Preset LED Cntr, 230V NL
LIBT1000 LIBT1 Single Preset LCD Timer, 115V NL
LIBT1010 LIBT1 Single Preset LCD Timer, 230V NL
LIBT1E00 LIBT1E Single Preset LED Timer, 115V NL
LIBT1E10 LIBT1E Single Preset LED Timer, 230V NL
LIBT2000 LIBT2 Dual Preset LCD Timer, 115V NL
LIBT2010 LIBT2 Dual Preset LCD Timer, 230V NL
LIBT2E00 LIBT2E Dual Preset LED Timer, 115V NL
LIBT2E10 LIBT2E Dual Preset LED Timer, 230V NL
LOGIC MAGNETIC PICKUP
LMPC0000 LMPC NPN O.C. w/Cable 825
LMPC0025 LMPC NPN O.C. w/25ft Cable 825
LMPC0050 LMPC NPN O.C. w/50ft Cable 825
LMPCC000 LMPCC NPN O.C. 3-Pin Connector 825
LMPEC000 LMPEC Emitter Follower, 3-Pin Connector 825
LYNX SERIES COUNTERS
LNXC1000 LNXC1 Single Preset Lynx, 115V NL
LNXC1010 LNXC1 Single Preset Lynx, 230V NL
LNXC1020 LNXC1 Single Preset Lynx, 12VDC NL
LNXC1030 LNXC1 Single Preset Lynx, 24VDC NL
LNXC2000 LNXC2 Dual Preset Lynx, 115V NL
LNXC2010 LNXC2 Dual Preset Lynx, 230V NL
LNXC2020 LNXC2 Dual Preset Lynx, 12VDC NL
LNXC2030 LNXC2 Dual Preset Lynx, 24VDC NL
LNXCC000 LNXCC Contact Input Lynx, 115V NL
LNXCC010 LNXCC Contact Input Lynx, 230V NL
LNXCC020 LNXCC Contact Input Lynx, 12VDC NL
LNXCC030 LNXCC Contact Input Lynx, 24VDC NL
LYNX SERIES TIMERS
LNXT1000 LNXT Single Preset, 115V NL
LNXT1010 LNXT Single Preset, 230V NL
LNXT1020 LNXT Single Preset, 12VDC NL
LNXT1030 LNXT Single Preset, 24VDC NL
LNXT2000 LNXT Dual Preset, 115V NL
LNXT2010 LNXT Dual Preset, 230V NL
LNXT2020 LNXT Dual Preset, 12VDC NL
LNXT2030 LNXT Dual Preset, 24VDC NL
LARGE DISPLAY PAX PANEL METER
LPAX0500 LPAX 5-Digit Large Display Module 682
LPAX0600 LPAX 6-Digit Large Display Module 686
LPAXCK00 LPAX 6-Digit Large Clock Display Module 686
LPAXDA00 LPAX 6-Digit Large Dual Process Display Module 690
NOTE
NL = Available, but not listed in the catalog.
See the support section of our website.
Revised 01/01/2009

N
10231-717-767-6511
PART NO. MODEL
NO. DESCRIPTION CAT
PAGE
MOUNTING HARDWARE FOR LENGTH SENSORS
LSAHC001 LSAHC Hinge Clamp Assembly 851
LSCB1000 LSCB Conversion Bracket 851
LENGTH SENSORS WITH DOUBLE SHAFT, NO WHEELS
LSCD00/3 LSCD Discontinued. Replaced with ZGG00/3C CALL
LSCD0001 LSCD Discontinued. Replaced with ZGG0001C CALL
LSCD0010 LSCD Discontinued. Replaced with ZGG0010C CALL
LSCD0012 LSCD Discontinued. Replaced with ZGG0012C CALL
LSCD0020 LSCD Discontinued. Replaced with ZGG0020C CALL
LSCD0060 LSCD Discontinued. Replaced with ZGG0060C CALL
LSCD0100 LSCD Discontinued. Replaced with ZGG0100C CALL
LSCD0120 LSCD Discontinued. Replaced with ZGG0120C CALL
LSCD0200 LSCD Discontinued. Replaced with ZGG0200C CALL
LSCD03/3 LSCD Discontinued. Replaced with ZGG03/3C CALL
LSCD33/3 LSCD Discontinued. Replaced with ZGG33/3C CALL
LENGTH SENSORS WITH SINGLE SHAFT, NO WHEELS
LSCS00/3 LSCS Discontinued. Replaced with ZFG00/3C CALL
LSCS0001 LSCS Discontinued. Replaced with ZFG0001C CALL
LSCS0010 LSCS Discontinued. Replaced with ZFG0010C CALL
LSCS0012 LSCS Discontinued. Replaced with ZFG0012C CALL
LSCS0020 LSCS Discontinued. Replaced with ZFG0020C CALL
LSCS0060 LSCS Discontinued. Replaced with ZFG0060C CALL
LSCS0100 LSCS Discontinued. Replaced with ZFG0100C CALL
LSCS0120 LSCS Discontinued. Replaced with ZFG0120C CALL
LSCS0200 LSCS Discontinued. Replaced with ZFG0200C CALL
LSCS03/3 LSCS Discontinued. Replaced with ZFG03/3C CALL
LSCS33/3 LSCS Discontinued. Replaced with SFG33/3C CALL
MINIATURE LENGTH SENSOR, QUADRATURE OUTPUT
LSM10250 LSM Discontinued. Replaced with ZMD0250B CALL
LSM10500 LSM Discontinued. Replaced with ZMD0500B CALL
LSM11000 LSM Discontinued. Replaced with ZMD1000B CALL
QUADRATURE LENGTH SENSORS WITH DUAL SHAFT, NO WHEELS
LSQD0100 LSQD Discontinued. Replaced with ZGH0100C CALL
LSQD0200 LSQD Discontinued. Replaced with ZGH0200C CALL
LSQD0500 LSQD Discontinued. Replaced with ZGH0500C CALL
QUADRATURE LENGTH SENSORS WITH SINGLE SHAFT, NO WHEELS
LSQS0100 LSQS Discontinued. Replaced with ZFH0100C CALL
LSQS0200 LSQS Discontinued. Replaced with ZFH0200C CALL
LSQS0500 LSQS Discontinued. Replaced with ZFH0500C CALL
LARGE PAX CUSTOM ANNUNCIATOR LABELS
LX****** LX LABEL LPAX Annunciator Label 929
MOUNTING BRACKETS FOR PHOTO-ELECTRIC SENSORS
MB200000 MB2 Bottom Mount Bracket Kit 861
MB300000 MB3 Side Mount Bracket Kit 861
MOUNTING BRACKETS
MB400000 MB4 PSA7A Proximity Sensor 815
MB4B0000 MB4B PSA7B Proximity Sensor 815
MB500000 MB5 PSA8A Proximity Sensor 815
MB5B0000 MB5B PSA8B Proximity Sensor 815
MB600000 MB6 Large Digit Display (LDD) NL
MB700000 MB7 Mounting Spacer for PSAFP 819
MB800000 MB8 Mounting Bracket for PSAFP 819
MBLPAX00 MBLPAX LPAX Mounting Bracket 979
MBM20000 PRM/RRM Bottom Mount Bracket Kit 865
MBM30000 PRM/RRM Side Mount Bracket Kit 865
PART NO. MODEL
NO. DESCRIPTION CAT
PAGE
MOTOR DRIVE CONTROLLER
MDC00100 MDC Motor Drive Controller 227
MDMU COUNTER/TIMER/TACH
MDMU0000 MDMU Panel Mount w/Reflective Display 899
MDMU0010 MDMU Panel Mount w/Yel-Grn Backlighting 899
MDMU0020 MDMU Panel Mount w/Red Backlighting 899
MDMU0100 MDMU PC Board Mount w/Reflective Display 899
MDMU0110 MDMU PC Board Mount w/Yel-Grn Bcklghtng 899
MDMU0120 MDMU PC Board Mount w/Red Backlighting 899
MDMV DC VOLTMETERS
MDMV0000 MDMV Panel Mount w/Reflective Display 900
MDMV0010 MDMV Panel Mount w/Yel-Grn Backlighting 900
MDMV0020 MDMV Panel Mount w/Red Backlighting 900
MDMV0100 MDMV PC Board Mount w/Reflective Display 900
MDMV0110 MDMV PC Board Mount w/Yel-Grn Bcklghtng 900
MDMV0120 MDMV PC Board Mount w/Red Backlighting 900
POWER SUPPLY
MLPS1000 MLPS1 Micro-Line, 85-250 VAC 913
MLPS2000 MLPS2 Micro-Line 24 VDC 913
MAGNETIC PICKUPS
MP25TA00 MP25TA 1/4" Threaded 823
MP37CA00 MP37CA 3/8" Cylindrical 823
MP37TA00 MP37TA 3/8" Threaded 823
MP37TAC1 MP37TA 3/8" Threaded with M12 Connector 823
MP62TA00 MP62TA 5/8" Threaded 823
MP62TAC1 MP62TA 5/8" Threaded with M12 Connector 823
MP62TB00 MP62TB 5/8" Threaded, Blind End 823
MP75TX00 MP75TX 3/4" Threaded, Explosion Proof 823
LARGE DISPLAY PAX PANEL METER MODULES
MPAXC000 PAX AC Power, PAXC Count Module 686
MPAXC010 PAX DC Power, PAXC Count Module 686
MPAXCK00 PAX AC Power, PAXCK Clock Module 686
MPAXCK10 PAX DC Power, PAXCK Clock Module 686
MPAXD000 PAX AC Power, PAXD Universal DC Input Module 682
MPAXD010 PAX DC Power, PAXD Universal DC Input Module 682
MPAXDP00 PAX AC Power, PAXDP Dual Process Module 690
MPAXDP10 PAX DC Power, PAXDP Dual Process Module 690
MPAXH000 PAX AC Power, PAXH True RMS Volt/Cur Module 682
MPAXI000 PAX AC Power, PAXI Count/Rate Module 686
MPAXI010 PAX DC Power, PAXI Count/Rate Module 686
MPAXP000 PAX AC Power, PAXP Process Module 682
MPAXP010 PAX DC Power, PAXP Process Module 682
MPAXR000 PAX AC Power, PAXR Rate Module 686
MPAXR010 PAX DC Power, PAXR Rate Module 686
MPAXS000 PAX AC Power, PAXS Strain Gage Module 682
MPAXS010 PAX DC Power, PAXS Strain Gage Module 682
MPAXT000 PAX AC Power, PAXT Thermocouple/RTD Module 682
MPAXT010 PAX DC Power, PAXT Thermocouple/RTD Module 682
MPAXTM00 PAX AC Power, PAXTM Timer Module 686
MPAXTM10 PAX DC Power, PAXTM Timer Module 686
NOTE
NL = Available, but not listed in the catalog.
See the support section of our website.
Revised 01/01/2009

N
1024 www.redlion.net
PART NO. MODEL
NO. DESCRIPTION CAT
PAGE
OUTPUT MODULES FOR TCU
OMD00000 Relay Module 574
OMD00001 Triac Module 574
OMD00003 SSR Drive Module 574
1/16 DIN PROCESS CONTROL UNITS
P1610000 P16 w/Relay Output 541
P1610010 P16 DC, w/Relay Output 541
P1611100 P16 w/Relay Output, 2 Alarms, and User Input 541
P1611110 P16 DC, w/Relay Out, 2 Alarms, and User Input 541
P1620000 P16 w/Solid State Output 541
P1620010 P16 DC, w/Solid State Output 541
P1621100 P16 w/Solid State Out, 2 Alarms, and User Input 541
P1621110 P16 DC, w/Solid State Out, 2 Alrms, & User Input 541
P1641100 P16 w/Analog Output, 2 Alarms, and User Input 541
P1641110 P16 DC, w/Analog Out, 2 Alarms, and User Input 541
P4800001 P48 w/Analog Output 591
P4800011 P48 DC, w/Analog Output 591
P4810000 P48 w/Relay Output 591
P4810010 P48 DC, w/Relay Output 591
P4810101 P48 w/Dual Relay, and Analog 591
P4810105 P48 w/Dual Relay, Analog, and RSP 591
P4810107 P48 w/Dual Relay, Analog, and RS485 591
P481010A P48 w/Dual Relay, and Dual Analog 591
P4810111 P48 DC, w/Dual Relay, Analog 591
P4810115 P48 DC, w/Dual Relay, Analog, and RSP 591
P4810117 P48 DC, w/Dual Relay, Analog, and RS485 591
P481011A P48 DC, w/Dual Relay, and Dual Analog 591
P4811100 P48 w/Dual Relay 591
P4811102 P48 w/Dual Relay, and RS485 591
P4811110 P48 DC, w/Dual Relay 591
P4811112 P48 DC, w/Dual Relay, and RS485 591
PROGRAMMING CABLES
P890301C RJ11 to DB9 Connector NL
P890301J RJ12 to RJ12 Connector NL
P890301Z Programming Cable (part of SFEDT) NL
P890806Z RJ11-10P Black w/ Housing NL
P890807Z RJ11-5P Black w/ Housing NL
P890808Z RJ11 Adapter for DIN Rail NL
P893805Z Paradigm to MODBUS RS485 (RJ11) NL
P895xxxZ Communication Cable NL
P895053Z Commun. Cable Siemens MPI w/ Adapter NL
PARADIGM PROFIBUS HOST
PAPBH000 PAPBH PROFIBUS Host Adapter NL
PAPBHDIN PROFIBUS DIN Rail Mounting Kit NL
PAX METERS
PAXC0000 PAXC Count Indicator, Field Upgradeable Red 137
PAXC0010 PAXC DC, Count Indicator, Field Upgradeable Red 137
PAXC0100 PAXC Count Indicator, Field Upgradeable Green 137
PAXC0110 PAXC DC, Count Indicator, Field Upgradeable Grn 137
PAXCDC10 PAX RS485 Option Card 938
PAXCDC1C PAX Extnd. RS485 Card w/Dual RJ11 Connector 938
PAXCDC20 PAX RS232 Option Card 938
PAXCDC2C PAX Extnd. RS232 Card w/9 Pin D Connector 938
PART NO. MODEL
NO. DESCRIPTION CAT
PAGE
PAXCDC30 PAX DeviceNet Option Card 944
PAXCDC40 PAX MODBUS Option Card 948
PAXCDC4C PAX Extnd. MODBUS Card with RJ11 Connector 948
PAXCDC50 PAX PROFIBUS-DP Option Card 954
PAXCDL10 PAX Analog Output Card 962
PAXCDS10 PAX Dual Relay Card 958
PAXCDS20 PAX Quad Relay Card 958
PAXCDS30 PAX Quad NPN-OC Card 958
PAXCDS40 PAX Quad PNP-OC Card 958
PAXCK000 PAXCK Clock/Timer, Field Upgradeable Red 268
PAXCK010 PAXCK DC, Clock/Timer, Field Upgradeable Red 268
PAXCK100 PAXCK Clock/Timer, Field Upgradeable Green 268
PAXCK110 PAXCK DC, Clock/Timer, Field Upgradeable Grn 268
PAXD0000 PAXD Universal DC Input, Field Upgradeable Red 378
PAXD0010 PAXD DC, Universal DC Input, Field Upgrad. Red 378
PAXD0100 PAXD Universal DC Input Field Upgradeable Grn 378
PAXD0110 PAXD DC, Universal DC Input, Field Upgrad. Grn 378
PAXDP000 PAXDP Dual Process Input, Upgradeable Red 440
PAXDP010 PAXDP DC, Dual Process Input, Upgradeable Red 440
PAXH0000 PAXH True RMS Volt & Current, Field Upgrad. Red 378
PAXH0100 PAXH True RMS Volt & Current, Field Upgrad. Grn 378
PAXI0000 PAXI Smart Counter/Rate, Field Upgradeable Red 137
PAXI0010 PAXI DC, Smart Counter/Rate, Field Upgrad. Red 137
PAXI0100 PAXI Smart Counter/Rate, Field Upgradeable Grn 137
PAXI0110 PAXI DC, Smart Counter/Rate, Field Upgrad. Grn 137
PAXLBK10 PAX Label Kit for PAX Meters 928
PAX LITE METERS
PAXLA000 PAXLA Process Current Volt Meter 347
PAXLBK30 PAX Label Kit for PAX Lite Analog Meters NL
PAXLC600 PAXLC Six Digit Counter 118
PAXLC800 PAXLC Eight Digit Counter 118
PAXLCL00 PAXLCL Current Loop Meter 422
PAXLCR00 PAXLCR Count/Rate Meter 125
PAXLHV00 PAXLHV AC Voltage Monitor 342
PAXLIA00 PAXLI AC Current Meter 329
PAXLID00 PAXLI DC Current Meter 329
PAXLIT00 PAXLIT 5 Amp Current Meter 336
PAXLPT00 PAXLPT Process Time Meter 220
PAXLPV00 PAXLPV Process Volt Meter 430
PAXLR000 PAXLR Rate Meter 210
PAXLRT00 PAXLRT RTD Meter 521
PAXLSG00 PAXLSG Strain Gage Meter 473
PAXLTC00 PAXLTC Thermocouple 513
PAXLVA00 PAXLV AC Volt Meter 329
PAXLVD00 PAXLV DC Volt Meter 329
PAX METERS
PAXP0000 PAXP Process Input, Field Upgradeable Red 378
PAXP0010 PAXP DC, Process Input, Field Upgradeable Red 378
PAXP0100 PAXP Process Input, Field Upgradeable Green 378
PAXP0110 PAXP DC, Process Input, Field Upgradeable Green 378
PAXR0000 PAXR Rate Indicator, Field Upgradeable Red 137
PAXR0010 PAXR DC, Rate Indicator, Field Upgradeable Red 137
PAXR0100 PAXR Rate Indicator, Field Upgradeable Green 137
PAXR0110 PAXR DC, Rate Indicator, Field Upgradeable Green 137
PAXRTC00 PAXRTC Real-Time Clock Card 686
PAXS0000 PAXS Strain/Bridge Input, Field Upgradeable Red 378
NOTE
NL = Available, but not listed in the catalog.
See the support section of our website.
Revised 01/01/2009

N
10251-717-767-6511
PART NO. MODEL
NO. DESCRIPTION CAT
PAGE
PAXS0010 PAXS DC, Strain/Bridge Input, Field Upgrad. Red 378
PAXS0100 PAXS Strain/Bridge Input, Field Upgradeable Grn 378
PAXS0110 PAXS DC, Strain/Bridge Input, Field Upgrad. Grn 378
PAXT0000 PAXT Thermocouple/RTD Input, Field Upgrad. Red 378
PAXT0010 PAXT DC, Thermo/RTD Input, Field Upgrad. Red 378
PAXT0100 PAXT Thermocouple/RTD Input, Field Upgrad. Grn 378
PAXT0110 PAXT DC, Thermo/RTD Input, Field Upgrad. Grn 378
PAXTM000 PAXTM Timer, Field Upgradeable Red 268
PAXTM010 PAXTM DC, Timer, Field Upgradeable, Red 268
PAXTM100 PAXTM Timer, Field Upgradeable Green 268
PAXTM110 PAXTM DC, Timer, Field Upgradeable Green 268
PAXUSB00 PAXUSB USB Option Card 936
INTELLIGENT SERIAL SLAVE MODULES FOR LDD
PBA04101 PBA w/Serial NL
PBA04104 PBA w/Alarms & Serial NL
INTELLIGENT MODULES FOR VOLTAGE INPUTS FOR LDD
PBD10000 PBD1 Base Unit NL
PBD10100 PBD1 w/Excitation NL
PBD10102 PBD1 w/Excitation & Alarms NL
PBD13100 PBD1 w/Excitation & Software (Sw) NL
INTELLIGENT MODULES FOR CURRENT INPUTS FOR LDD
PBD20000 PBD2 Base Unit NL
PBD20100 PBD2 w/Excitation NL
PBD20102 PBD2 w/Excitation & Alarms NL
PBD23100 PBD2 w/Excitation & Software (Sw) NL
PBD23107 PBD2 w/Exc, Sw, Alarms, Serial, & Analog NL
INTELLIGENT MODULES FOR DIGITAL RATE INPUTS FOR LDD
PBI04100 PBI Base Unit NL
PBI04101 PBI w/Serial Communication NL
PBI04102 PBI w/Dual Alarm NL
PBI04107 PBI w/Alarm, Analog Out & Serial Comm NL
APOLLO MODULES FOR LDD
PBLCK000 PBLCK Real Time Clock NL
PBLPT400 PBLPT 4-Digit Process Time NL
PBLPT500 PBLPT 5-Digit Process Time NL
PBLR0600 PBLR Time Base Rate NL
PBLRI600 PBLRI Time Interval Rate NL
PBLSP600 PBLSP BCD Slave Display Module NL
PBLT0600 PBLT 6-Digit Totalizer NL
PROCESS CONTROL UNITS
PCU01000 PCU w/Analog Output 596
PCU01001 PCU w/Alarm & Analog Output 596
PCU10000 PCU Base unit, w/NEMA 4X 596
PCU10001 PCU w/NEMA 4X & Alarm 596
PCU10002 PCU w/NEMA 4X & Secondary Output 596
PCU10104 PCU RSP w/NEMA 4X, Alarm & RS485 596
PCU10307 PCU MVP w/NEMA 4X, Alarm & RS485 596
PCU11000 PCU w/NEMA 4X & Analog Output 596
PCU11001 PCU w/NEMA 4X, Analog Output & Alarm 596
PCU11002 PCU w/NEMA 4X, Analog & Secondary 596
PCU11004 PCU w/NEMA 4X, Analog, Alarm & RS485 596
PCU11005 PCU w/NEMA 4X, Analog, Secondary & RS485 596
PCU11108 PCU RSP w/NEMA 4X, 4-20 Analog & Alarm 596
PCU11306 PCU MVP w/NEMA 4X, 4-20 Analog & Alarm 596
PCU12001 PCU w/NEMA 4X, 0-10VDC Analog & Alarm 596
PCU12004 PCU w/NEMA 4X, 0-10VDC Anlg, Alarm & RS485 596
PART NO. MODEL
NO. DESCRIPTION CAT
PAGE
PCU12005 PCU w/NEMA 4X, 0-10 Anlg, Scdry/Alrm & RS485 596
PCU12108 PCU RSP w/NEMA 4X, 0-10 Analog & Alarm 596
PCU12306 PCU MVP w/NEMA 4X, 0-10 Analog & Alarm 596
PLANT FLOOR MARQUEE
PFM1608A TRICOLOR DISP 16x80 115V 61
PFM1608B TRICOLOR DISP 16x80 230V 61
PFM2412A TRICOLOR DISP 24x120 115V 61
PFM2412B TRICOLOR DISP 24x120 230V 61
PFM3212A TRICOLOR DISP 32x120 115V 61
PFM3212B TRICOLOR DISP 32x120 230V 61
PFM6412A TRICOLOR DISP 64x120 115V 61
PFM6412B TRICOLOR DISP 64x120 230V 61
IAMS PROGRAMMING MODULE
PGMMOD00 IAMS Programming Module 731
ACCESSORIES
PGM00000 PGM Programming Box For LDD NL
PKS10000 PKS1 Panel Key Switch NL
CUB PANEL MOUNT KITS
PMK10000 PMK1 Cub 1 NL
PMK1A000 PMK1A Cub 1 NL
PMK1B000 PMK1B Cub 1 NL
PMK2A000 PMK2A Cub 2, Key Reset NL
PMK2B000 PMK2B Cub 2 NL
PANEL MOUNT KITS
PMK3A000 PMK3A Lynx Mounting Panel 985
PMK3B000 PMK3B Libra Mounting Panel 985
PMK3C000 PMK3C C48/T48 Mounting Panel 985
PMK4A000 PMK4A Gemini Mounting Panel 985
PMK4B000 PMK4B Apollo Mounting Panel 985
PMK50000 PMK5 1/4 DIN to 1/8 DIN Panel 993
PMK60000 PMK6 1/8 DIN to 1/16 DIN Panel 996
PMK6A000 PMK6A 1/8 DIN to CUB5 997
PMK70000 PMK7 1/4 DIN to 1/16 DIN Panel 993
PMK7A000 PMK7A 1/4 to CUB5 993
PMK80000 PMK8 Gemini to PAX Adapter Kit 998
APOLLO PANEL MOUNT KIT
PMKA1000 PMKA1 45.7 x 98.4 mm Panel Mnt 3 Piece Kit 1000
CUB CONTROLLER PANEL MOUNT KITS
PMKCC100 PMKCC1 50 x 50 mm Panel Mount 3 Piece Kit 1001
PMKCC200 PMKCC2 72 x 72 mm Panel Mount 3 Piece Kit 1001
PMKCC300 PMKCC3 60 x 75 mm Panel Mount 2 Piece Kit 1001
GEMINI PANEL MOUNT KITS
PMKG1000 PMKG1 68x138 mm Panel Mount 3 Piece Kit 999
PANELS FOR UTILITY ENCLOSURES
PNL1A000 Blank Panel For Small Enclosure NL
PNL1B000 Panel For SCP,SCT,DT3A,DT3D,RMX NL
PNL1C000 Panel For Gemini Series NL
PNL1D000 Panel For Libra Series NL
PNL1E000 Panel For Lynx Series NL
PNL1F000 Panel For Apollo Series NL
PNL1G000 Panel For 1/16 DIN Units NL
PNL2A000 Blank Panel For Large Enclosure NL
PNL2C000 Panel For SCD NL
NOTE
NL = Available, but not listed in the catalog.
See the support section of our website.
Revised 01/01/2009

N
1026 www.redlion.net
PART NO. MODEL
NO. DESCRIPTION CAT
PAGE
PNL2D000 Double Cutout Panel For Large Enclsr NL
PNL3A000 Panel For Libra Series NL
PNL3B000 Panel For Libra Series w/Keylock NL
PNL3C000 Panel For Lynx Series NL
PNL3D000 Panel For Lynx Series w/Keylock NL
PNL3E000 Blank Panel (no cut-out) NL
PNL3F000 Panel For 1/16 DIN Units NL
PNL3G000 Panel For 1/16 DIN Units w/Keylock NL
FREQUENCY TO ANALOG CONVERTERS
PRA20000 PRA2 Pulse Rate to Analog Converter NL
PHOTO-ELECTRIC SENSORS
PRDC0000 PRDC Proximity (Diffused), DC Powered 861
PRMDC000 PRM/RRM Miniature Prox. DC Sensor w/Cable 865
PRMDC001 PRM/RRM Miniature Prox. DC Sensor w/Pico Conn. 865
SPEED SWITCHES
PRS10011 PRS1 0.1-1 Hz, 115V NL
PRS10012 PRS1 0.1-1 Hz, 230V NL
PRS10101 PRS1 1-10 Hz, 115V NL
PRS10102 PRS1 1-10 Hz, 230V NL
PRS11011 PRS1 10-100 Hz, 115V NL
PRS11012 PRS1 10-100 Hz, 230V NL
PRS11021 PRS1 100-1000 Hz, 115V NL
PRS11022 PRS1 100-1000 Hz, 230V NL
PRS11031 PRS1 1000-10,000 Hz, 115V NL
PRS11032 PRS1 1000-10,000 Hz, 230V NL
PROXIMITY SENSORS
PSA10000 PSA1 1.5 mm Inductive 815
PSA1B000 PSA1B 1.5 mm Inductive 815
PSA20000 PSA2 10 mm Inductive 815
PSA2B000 PSA2B 10 mm Inductive 815
PSA6A000 PSA6A 1.5 mm Inductive 815
PSA6B000 PSA6B 1.5 mm Inductive 815
PSA7A000 PSA7A 5 mm Inductive 815
PSA7B000 PSA7B 5 mm Inductive 815
PSA8A000 PSA8A 10 mm Inductive 815
PSA8B000 PSA8B 10 mm Inductive 815
PSAC0000 PSAC Inductive w/10 ft Cable 818
PSAC0025 PSAC Inductive w/25 ft Cable 818
PSAC0050 PSAC Inductive w/50 ft Cable 818
PSAFP100 PSAFP Flat Pack Proximity Sensor, 2 mm Range 819
PSAFP200 PSAFP Flat Pack Proximity Sensor, 10 mm Range 819
PSAH0000 PSAH NPN O.C. Hall Effect Sensor 814
PROCESS SETPOINT CONTROLLERS
PSC11001 PSC w/NEMA 4X, Alarm & 4-20 Analog Output 604
PSC11004 PSC w/NEMA 4X, Alarm, 4-20 Analog & RS485 604
PSC11005 PSC w/NEMA 4X, Secndry, 4-20 Analog & RS485 604
PSC12004 PSC w/NEMA 4X, Alarm, 0-10 Analog & RS485 604
PSC12005 PSC w/NEMA 4X, Secndry, 0-10 Analog & RS485 604
DIN RAIL POWER SUPPLIES
PSDR0100 PSDR 24 VDC @ 1A 907
PSDR0200 PSDR 24 VDC @ 2A 907
PSDR0400 PSDR 24 VDC @ 4A 907
PART NO. MODEL
NO. DESCRIPTION CAT
PAGE
POWER SUPPLY MODULES
PSMA1000 PSMA1 115V 915
PSMA2000 PSMA2 230V 915
PRESSURE TRANSMITTER
PT00001R PT 2 Wire Relative, Bar 0-1, PSI 0-14.5 868
PT00002R PT 2 Wire Relative, Bar 0-1.6, PSI 0-23.2 868
PT00010R PT 2 Wire Relative, Bar 0-10, PSI 0-145 868
PT00250R PT 2 Wire Relative, Bar 0-250, PSI 0-3625 868
POTENTIAL TRANSFORMER
PT600120 PT600 Potential Transformer NL
C48 REPLACEMENT OUTPUT BOARDS
RBC48001 1 Preset, NPN-OC 178
RBC48002 1 Preset, PNP-OC 178
RBC48003 2 Preset, Relay 178
RBC48004 3 Preset, Relay, NPN-OC 178
RBC48005 3 Preset, Relay, PNP-OC 178
T48/P48 REPLACEMENT OUTPUT BOARDS
RBD48100 Main Control Relay 566
RBD48111 Main Control & Dual Alarm Relay 566
RBD48200 Main Control Logic Output 566
RBD48211 Main Control Logic & Dual Alarm Relay 566
TLA REPLACEMENT OUTPUT BOARD
RBDLA210 Form-C Limit Output Relay 611
PHOTO-ELECTRIC RECEIVER SENSOR
RCDC0000 RCDC (Opposed Beam Pair), DC Powered 861
RCMDC000 PRM/RRM Mini(Opposed Beam Pair) DC Recv w/Cable 865
RCMDC001 PRM/RRM Mini(Opposed Beam Pair) DC Rev w/Pico 865
RELAYS
RLY10000 RLY Relay, 12VDC 909
RLY30000 RLY Relay, 115V 909
RLY50000 RLY SSR Power Unit 922
RLY60000 RLY 25A Single Phase DIN Rail Mnt Solid State 924
RLY6A000 RLY 40A Single Phase DIN Rail Mnt Solid State 924
RLY70000 RLY Three Phase DIN Rail Mnt Solid State Relay 926
RLYBD000 RLY Gemini 1000 Relay NL
RLYBD001 RLY Gemini 4100 Relay NL
RLYBD002 RLY Gemini Dual Relay NL
RLYLG001 RLY Single Relay Board, Legend Series 187
RLYLG002 RLY Dual Relay Board, Legend Series 187
RATE MULTIPLIER
RMX00000 RMX Rate Multiplier NL
ROTARY PULSE GENERATOR ADAPTER PLATE
RPGAP000 RPGAP RPG Adapter NL
BORE INSERT KIT
RPGBII00 RPGBI ZUK Inch Bore Insert Kit 847
RPGBII01 ZPJ Inch Standard Bore Insert Kit 849
RPGBIM00 RPGBI ZUK Large Metric Bore Insert Kit 847
RPGBIM01 ZPJ Large Metric Bore Insert Kit 849
RPGBIM02 ZPJ Small Metric Bore Insert Kit 849
BORE SLEEVES
RPGBSI00 RPGBSI 0.5 inch Bore Sleeve 833
RPGBSI01 RPGBSI 0.625 inch Bore Sleeve 833
RPGBSI02 RPGBSI 0.75 inch Bore Sleeve 833
RPGBSI03 RPGBSI 0.875 inch Bore Sleeve 833
RPGBSI04 RPGBSI 1 inch Bore Sleeve 833
RPGBSM00 RPGBSM 19 mm Bore Sleeve 833
NOTE
NL = Available, but not listed in the catalog.
See the support section of our website.
Revised 01/01/2009

N
10271-717-767-6511
PART NO. MODEL
NO. DESCRIPTION CAT
PAGE
RPGBSM01 RPGBSM 20 mm Bore Sleeve 833
RPGBSM02 RPGBSM 24 mm Bore Sleeve 833
RPGBSM03 RPGBSM 25 mm Bore Sleeve 833
ROTARY PULSE GENERATORS
RPGC0001 RPGC Discontinued. Replaced with ZCG0001C CALL
RPGC0010 RPGC Discontinued. Replaced with ZCG0010C CALL
RPGC0012 RPGC Discontinued. Replaced with ZCG0012C CALL
RPGC0060 RPGC Discontinued. Replaced with ZCG0060C CALL
RPGC0100 RPGC Discontinued. Replaced with ZCG0100C CALL
RPGC0120 RPGC Discontinued. Replaced with ZCG0120C CALL
RPGC0200 RPGC Discontinued. Replaced with ZCG0200C CALL
FLEXIBLE COUPLINGS
RPGFC001 0.250" - 0.25" Flexible Coupling 837
RPGFC002 0.250" - 0.375" Flexible Coupling 837
RPGFC003 0.375" - 0.375" Flexible Coupling 839
RPGFC004 0.375" - 0.500" Flexible Coupling 839
RPGFC005 0.25"-6mmFlexible Coupling 837
RPGFC006 0.375"-6mmFlexible Coupling 839
ACCESSORIES
RPGMB001 RPGMB ZPJ ZUK Magnetic Coupling Kit 847
RPGMB002 RPGMB ZMD Mounting Bracket 857
RPGMK000 RPGMK ZPJ 1.575 in (40 mm) Bolt Circle Flex Mnt Kit 849
RPGMK001 RPGMK ZPJ 1.811 in (46 mm) Bolt Circle Flex Mnt Kit 849
RPGMK002 RPGMK ZUK Standard Tether Arm Kit 4.5 Inch 847
RPGMK003 RPGMK ZUK Elongated Tether Arm Kit 8.5 Inch 847
RPGPC000 RPGPC 56C Protective Cover Kit 833
QUADRATURE ROTARY PULSE GENERATORS
RPGQ0100 RPGQ Discontinued. Replaced with ZCH0100C CALL
RPGQ0200 RPGQ Discontinued. Replaced with ZCH0200C CALL
RPGQ0500 RPGQ Discontinued. Replaced with ZCH0500C CALL
PHOTO-ELECTRIC SENSORS
RRDC0000 RRDC Retro-Reflective, DC Powered 861
RRMDC000 PRM/RRM Mini Retro-Reflective, Sensor w/Cable 865
DIN RAIL RELAY SYSTEM
RSBARR00 RSRLY Relay System Barrier Plate 920
RSBUSS00 RSRLY Relay System PLC Buss Block 920
RSCJMP10 RSRLY Relay System Cont Jumper - Red 920
RSCJMP20 RSRLY Relay System Cont Jumper - Blue 920
RSCJMP30 RSRLY Relay System Cont Jumper - Grey 920
RSJMPR10 RSRLY Relay System 2 POS Jumper - Red 920
RSJMPR20 RSRLY Relay System 2 POS Jumper - Blue 920
RSJMPR30 RSRLY Relay System 2 POS Jumper - Grey 920
RSMARK00 RSRLY Relay Marker 920
RSRLY100 RSRLY RS Repl. Relay 920
RSRLYB00 RSRLY RS Relay Block 920
RSRSTP00 RSRLY Rail Stop 920
PHOTO-ELECTRIC SENSORS
RT100000 RT1 Retro-Reflective Target 1.5" 861
RT200000 RT2 Retro-Reflective Target 3" 861
SUB-CUB MODULES
SCUB1000 SCUB1 SCUB-1 Counter, 6-Digit 895
SCUB2000 SCUB2 SCUB-2 Counter, 6-Digit 895
SCUB28A0 SCUB28 SCUB-28 Counter, 8-Digit 896
SCUBD200 SCUBD SCUB-D Bi-Directional Cntr, 8-Digit 897
SCUBT200 SCUBT SCUB-T Timer/Counter, 5 1/2-Digit 898
PART NO. MODEL
NO. DESCRIPTION CAT
PAGE
PROGRAMMING SOFTWARE
OPCWORX OPC Server Configuration Software NL
SFC48xxx SFC48 C48 178
SFCRDxxx SFCR Crimson for PAX 137
SFCRK SFCR Crimson for Modular Controller Software Kit NL
SFCRM1xx SFCR Crimson Software for Modular Controller NL
SFCRM200 SFCR Crimson for G3 Software Kit NL
SFDLC SFDLC DLC NL
SFEDTxxx SFEDT Paradigm - EDICT97 NL
SFIMS SFIMS Intelligent Modules NL
SFLGPxxx SFLGP Legend 187
SFPAXxxx SFPAX PAX NL
SFT48xxx SFT48 T48/P48 566
SHROUD
SHR10000 SHR Large Digit Display (LDD) NL
SHREPAX0 SHR EPAX Shroud 983
SHRLPAX0 SHR LPAX Shroud 979
MISCELLANEOUS
SKT10000 SKT1 8-Pin Socket 909
SKTDIN00 DIN Rail Mount, 8-Pin Octal Socket 909
SNUB0000 SNUB R-C Snubber Inductive Load Supressor 967
SUPER SUB-CUB MODULE
SSCUB200 SSCUB2 SSCUB 2 Display Counter Module NL
DIN RAIL MOUNTED 8 PORT ETHERNET SWITCH
SWITCH08 SWITCH 8-Port Ethernet Switch 802
1/16 DIN TEMPERATURE CONTROL UNITS
T1610000 T16 w/Relay Output 541
T1610010 T16 DC, w/Relay Output 541
T1611100 T16 w/Relay Output, 2 Alarms, and Usr Inp 541
T1611110 T16 DC, w/Relay Out, 2 Alarms, and Usr Inp 541
T1620000 T16 w/Solid State Output 541
T1620010 T16 DC, w/Solid State Output 541
T1621100 T16 w/Solid State Out, 2 Alarms, and Usr Inp 541
T1621110 T16 DC, w/Solid State Out, 2 Alms and Usr Inp 541
T1641100 T16 w/Analog Output, 2 Alarms, and Usr Inp 541
T1641110 T16 DC, w/Analog Out, 2 Alarms, and Usr Inp 541
T4810000 T48 w/Relay Output 566
T4810002 T48 w/Relay Output & RS485 566
T4810010 T48 DC, w/Relay Output 566
T4810101 T48 w/Dual Relay Output & Analog 566
T4810105 T48 w/Dual Relay Output, Analog, & RSP 566
T4810106 T48 w/Dual Relay Output, Analog, & HCM 566
T4810107 T48 w/Dual Relay, Analog & RS485 566
T4810108 T48 w/Dual Relay Output, RSP, & RS485 566
T4810109 T48 w/Dual Relay Output, HCM, & RS485 566
T481010A T48 w/Dual Relay Output & Dual Analog 566
T4810111 T48 DC, w/Dual Relay & Analog 566
T4810115 T48 DC, w/Dual Relay, Analog, & RSP 566
T4810116 T48 DC, w/Dual Relay, Analog, & HCM 566
T4810117 T48 DC, w/Dual Relay, Analog & RS485 566
T4810118 T48 DC, w/Dual Relay, RSP, & RS485 566
T4810119 T48 DC, w/Dual Relay, HCM, & RS485 566
T481011A T48 DC, w/Dual Relay & Dual Analog 566
NOTE
NL = Available, but not listed in the catalog.
See the support section of our website.
Revised 01/01/2009

N
1028 www.redlion.net
PART NO. MODEL
NO. DESCRIPTION CAT
PAGE
T4811000 T48 w/Dual Relay Output 566
T4811100 T48 w/3 Relay Output 566
T4811102 T48 w/3 Relay Output & RS485 566
T4811103 T48 w/3 Relay Outputs & RSP 566
T4811104 T48 w/3 Relay Outputs & HCM 566
T4811110 T48 DC, w/3 Relay Output 566
T4811112 T48 DC, w/3 Relay Output & RS485 566
T4811113 T48 DC, w/3 Relay Outputs & RSP 566
T4811114 T48 DC, w/3 Relay Outputs & HCM 566
T4820000 T48 w/Logic Output 566
T4820010 T48 DC, w/Logic Output 566
T4820201 T48 w/Dual Logic Output & Analog 566
T4820205 T48 w/Dual Logic Output, Analog, & RSP 566
T4820206 T48 w/Dual Logic Output, Analog, & HCM 566
T4820208 T48 w/Dual Logic Output, RSP & RS485 566
T4820209 T48 w/Dual Logic Output, HCM, & RS485 566
T4820211 T48 DC, w/Dual Logic Output & Analog 566
T4820215 T48 DC, w/Dual Logic Output, Analog, & RSP 566
T4820216 T48 DC, w/Dual Logic Output, Analog, & HCM 566
T4820218 T48 DC, w/Dual Logic Output, RSP & RS485 566
T4820219 T48 DC, w/Dual Logic Output, HCM, & RS485 566
T4821000 T48 w/Logic & Relay Output 566
T4821100 T48 w/Logic & Dual Relay 566
T4821102 T48 w/Logic, Dual Relay & RS485 566
T4821103 T48 w/Logic, Dual Relay, & RSP 566
T4821104 T48 w/Logic, Dual Relay, HCM 566
T4821110 T48 DC, w/Logic & Dual Relay 566
T4821112 T48 DC, w/Logic, Dual Relay & RS485 566
T4821113 T48 DC, w/Logic, Dual Relay, & RSP 566
T4821114 T48 DC, w/Logic, Dual Relay, HCM 566
T4832200 T48 w/Triac & Dual Logic Output 566
T4832210 T48 DC, w/Triac & Dual Logic Output 566
TRIAC CONVERTER MODULE, MICRO-LINE
TCM10000 TCM1 115V 917
1/8 DIN TEMPERATURE CONTROL UNITS
TCU00000 TCU Base Unit 574
TCU00001 TCU w/Alarm 574
TCU00002 TCU w/Cooling Output & Alarm 574
TCU01001 TCU w/Alarm & Analog Ouput 574
TCU01004 TCU w/Analog Output, Alarm & RS485 Comm 574
TCU01005 TCU w/Analog, Cooling & RS485 Comm 574
TCU10000 TCU Base unit, w/NEMA 4X 574
TCU10001 TCU w/NEMA 4X & Alarm 574
TCU10002 TCU w/NEMA 4X, Cooling Output, & Alarm 574
TCU10104 TCU Remote Setpoint w/N 4X, Alrms & RS485 574
TCU10204 TCU Heater Crnt Mntr w/N 4X, Alrms & RS485 574
TCU10307 TCU Motrzd Valve Pstnr w/N 4X, Alrm & RS485 574
TCU11001 TCU w/NEMA 4X, Alarm & Analog Output 574
TCU11002 TCU w/NEMA 4X, Cooling, Alarm & Analog 574
TCU11004 TCU w/NEMA 4X, Analog, Alarm & RS485 574
TCU11005 TCU w/NEMA 4X, Analog, Cooling & RS485 574
TCU11108 TCU Remote Setpnt w/NEMA 4X, 4-20 Alg & Alrm 574
TCU11208 TCU Htr Crnt Mntr w/NEMA 4X, 4-20 Alg & Alrm 574
PART NO. MODEL
NO. DESCRIPTION CAT
PAGE
TCU11306 TCU Mtr Vl Pstnr w/NEMA 4X, 4-20 Analog & Alrm 574
TCU12001 TCU w/NEMA 4X, Alarm, & 0-10VDC Analog 574
TCU12004 TCU w/NEMA 4X, Alarm, RS485, & VDC Analog 574
TCU12005 TCU w/NEMA 4X, Cool, Alarm, RS485, & Analog 574
TCU12108 TCU Remote Setpnt w/NEMA 4X, 0-10 Alg & Alrm 574
TCU12306 TCU Mtr Vl Pstnr w/NEMA 4X, 0-10 Anlg & Alarm 574
TEMPERATURE LIMIT ALARM
TLA11100 TLA Form-A Limit Relay w/2 Alarms 611
TLA11110 TLA DC, Form-A Limit Relay w/2 Alarms 611
TLA21000 TLA Form-C Limit Relay w/1 Alarm 611
TLA21010 TLA DC, Form-C Limit Relay w/1 Alarm 611
THERMOCOUPLE TEMPERATURE PROBE ACCESSORIES
TMPACC01 TMPACC Spring Loaded Fitting 869
TMPACC02 TMPACC Cast Aluminum Weatherproof Head 869
TMPACC03 TMPACC Spare Tube Sleeve 869
TMPACC04 TMPACC Simplex Terminal Block (for TC’s) 869
TMPACC05 TMPACC Three Terminal Block (for RTD’s) 869
THERMOCOUPLE TEMPERATURE PROBES
TMPA2S01 TMP Plat Type, 400°F869
TMPA2S02 TMP Plat Type, 900°F869
TMPE2SU1 TMP Type E, 400°F869
TMPE2SU2 TMP Type E, 900°F869
TMPE2SU3 TMP Type E, 1300°F869
TMPJ2SU1 TMP Type J, 400°F869
TMPJ2SU2 TMP Type J, 900°F869
TMPJ2SU3 TMP Type J, 1300°F869
TMPK2SU1 TMP Type K, 400°F869
TMPK2SU2 TMP Type K, 900°F869
TMPK2SU3 TMP Type K, 1300°F869
TMPT2SU1 TMP Type T, 400°F869
RETRACTABLE SENSOR CABLES
TMPCBS01 TMPCBS 2 ft retract cable Type J Bare Wire Ends 873
TMPCBS02 TMPCBS 2 ft retract cable Type K Bare Wire Ends 873
TMPCBS03 TMPCBS 2 ft retract cable Type T Bare Wire Ends 873
TMPCBS04 TMPCBS 2 ft retract cable Type E Bare Wire Ends 873
THERMOCOUPLE CONNECTORS
TMPCNM01 TMPCN Quick Disconnect Mini Connector Type K Male 873
TMPCNM02 TMPCN Quick Disconct Mini Connector Type K Female 873
TMPCNM03 TMPCN Quick Disconnect Mini Connector Type T Male 873
TMPCNM04 TMPCN Quick Disconct Mini Connector Type T Female 873
TMPCNM05 TMPCN Quick Disconnect Mini Connector Type E Male 873
TMPCNM06 TMPCN Quick Disconct Mini Connector Type E Female 873
TMPCNM07 TMPCN Quick Disconnect Mini Connector Type J Male 873
TMPCNM08 TMPCN Quick Disconct Mini Connector Type J Female 873
TMPCNM09 TMPCN Miniature Connector for RTD Male 878
TMPCNM10 TMPCN Miniature Connector for RTD Female 878
TMPCNS01 TMPCN Quick Disconnect Std Connector Type K Male 873
TMPCNS02 TMPCN Quick Disconct Std Connector Type K Female 873
TMPCNS03 TMPCN Quick Disconnect Std Connector Type T Male 873
TMPCNS04 TMPCN Quick Disconct Std Connector Type T Female 873
TMPCNS05 TMPCN Quick Disconnect Std Connector Type E Male 873
TMPCNS06 TMPCN Quick Disconnect Std Connector Type E Female 873
TMPCNS07 TMPCN Quick Disconnect Std Connector Type J Male 873
TMPCNS08 TMPCN Quick Disconnect Std Connector Type J Female 873
NOTE
NL = Available, but not listed in the catalog.
See the support section of our website.
Revised 01/01/2009

N
10291-717-767-6511
PART NO. MODEL
NO. DESCRIPTION CAT
PAGE
THERMOCOUPLE PROBES
TMPEQD01 Quick Disconnect Mini Type E Stainless .062 873
TMPEQD02 Quick Disconnect Mini Type E Inconel .062 873
TMPEQD03 Quick Disconnect Std Type E Stainless .125 873
TMPEQD04 Quick Disconnect Std Type E Inconel .125 873
TMPJQD01 Quick Disconnect Mini Type J Stainless .062 873
TMPJQD02 Quick Disconnect Mini Type J Inconel .062 873
TMPJQD03 Quick Disconnect Std Type J Stainless .125 873
TMPJQD04 Quick Disconnect Std Type J Inconel .125 873
TMPKBT01 Springload Compression Fittng Stainless 5 ft 872
TMPKCF01 Ceramic Overbraided Type K 10 ft 871
TMPKQD01 Quick Disconct Mini Type K Stainless.062 873
TMPKQD02 Quick Disconnect Mini Type K Inconel .062 873
TMPKQD03 Quick Disconnect Std Type K Stainless.125 873
TMPKQD04 Quick Disconnect Std Type K Inconel .125 873
TMPKQD05 Quick Disconct Std Type K XL High Temp .125 873
TRANSITION JOINT PROBES
TMPKTJ01 K Type Inconel .063 876
TMPKTJ02 K Type Inconel .125 876
TMPKTJ03 K Type Stainless Steel .063 876
TMPKTJ04 K Type Stainless Steel .125 876
TMPKTJ05 K Type XL High Temp .125 876
TMPKTJ06 K Type XL High Temp .063 876
UTILITY THERMOCOUPLES WITH HANDLE
TMPKUT01 Type K Stainless Steel .125 Grounded 872
TMPKUT02 Type K Inconel .125 Grounded 872
RTD SENSORS
TMPRT001 Surface Mount Teflon PFA 10 ft 878
TMPRT002 Pipe Plug 6 ft cable with Male Mini Connector 878
THERMOCOUPLE PROBES
TMPTQD01 Quick Disconnect Mini Type T Stainless.062 873
TMPTQD02 Quick Disconnect Mini Type T Inconel .062 873
TMPTQD03 Quick Disconnect Std Type T Stainless.125 873
TMPTQD04 Quick Disconnect Std Type T Inconel .125 873
THERMOCOUPLE TRANSMITTER WITH FEMALE CONNECTOR
TMPTRN01 Type K 0-2000 F 880
TMPTRN02 Type K 0-1000 F 880
TMPTRN03 Type T 0-250 F 880
TMPTRN04 Type T 0-750 F 880
TMPTRN05 Type J 0-250 F 880
TMPTRN06 Type J 0-1000 F 880
TMPTRN07 RTD 36-1056 F 880
THERMOCOUPLE WIRE
TMWGE025 TMW Glass Braid Type E 25 ft 24 AWG 873
TMWGE100 TMW Glass Braid Type E 100 ft 24 AWG 873
TMWGJ025 TMW Glass Braid Type J 25 ft 24 AWG 873
TMWGJ100 TMW Glass Braid Type J 100 ft 24 AWG 873
TMWGK025 TMW Glass Braid Type K 25 ft 24 AWG 873
TMWGK100 TMW Glass Braid Type K 100 ft 24 AWG 873
TMWGT025 TMW Glass Braid Type T 25 ft 24 AWG 873
TMWGT100 TMW Glass Braid Type T 100 ft 24 AWG 873
TMWSE025 TMW Teflon Type E 25 ft 24 AWG 873
TMWSE100 TMW Teflon Type E 100 ft 24 AWG 873
TMWSJ025 TMW Teflon Type J 25 ft 24 AWG 873
TMWSJ100 TMW Teflon Type J 100 ft 24 AWG 873
TMWSK025 TMW Teflon Type K 25 ft 24 AWG 873
PART NO. MODEL
NO. DESCRIPTION CAT
PAGE
TMWSK100 TMW Teflon Type K 100 ft 24 AWG 873
TMWST025 TMW Teflon Type T 25 ft 24 AWG 873
TMWST100 TMW Teflon Type T 100 ft 24 AWG 873
REPLACEMENT TIRES
TORF1000 Neoprene, 1 Ft 851
TORM0333 Neoprene, 1/3 Meter 851
TORM0400 Neoprene, 4/10 Meter 851
TORY0400 Neoprene, 4/10 Yd 851
ACCESSORIES
TP16KIT1 T/P16 Programming Kit w/Power Supply 541
TP16KIT2 T/P16 Programming Kit w/o Power Supply 541
TEMPERATURE SETPOINT CONTROLLERS
TSC01001 TSC w/Alarm & 4-20 Analog Output 583
TSC11001 TSC w/NEMA 4X, Alarm & 4-20 Analog Output 583
TSC11002 TSC w/NEMA 4X, Cooling Out, & 4-20 Analog 583
TSC11004 TSC w/NEMA 4X, Alarm, 4-20 Analog & RS485 583
TSC11005 TSC w/NEMA 4X, Cooling, 4-20 Analog & RS485 583
TSC12004 TSC w/NEMA 4X, Alarm, 0-10 Analog & RS485 583
TSC12005 TSC w/NEMA 4X, Cooling, 0-10 Analog & RS485 583
THUMBWHEEL SWITCHES
TSW0A400 TSW0A4 0 True, Terminal Block, 4-Digit NL
TSW0A600 TSW0A6 0 True, Terminal Block, 6-Digit NL
TSW1A400 TSW1A4 1 True, Terminal Block, 4-Digit NL
TSW1A600 TSW1A6 1 True, Terminal Block, 6-Digit NL
OPERATOR INTERFACE PANELS
TX700T00 TX700T 10.4" TFT Color Touchscreen, 736 K Mem NL
TXCCFL00 TX700T TX Backlight Replacement NL
VOLTAGE CONVERTER MODULES
VCM10000 VCM1 4-50 V NL
VCM20000 VCM2 50-270 V NL
VCMA0000 VCMA Replaced by VCM10000 CALL
VCMB0000 VCMB Replaced by VCM10000 or VCM20000 CALL
VCMC0000 VCMC Replaced by VCM20000 CALL
VCMD0000 VCMD Replaced by VCM20000 CALL
VCME0000 VCME Replaced by VCM10000 CALL
VCMF0000 VCMF Replaced by VCM10000 or VCM20000 CALL
VCMG0000 VCMG Replaced by VCM20000 CALL
VCMH0000 VCMH Replaced by VCM20000 CALL
OPERATOR INTERFACE PANELS
VX500TS0 VX500TS 640 x 480, 16 Color, Touchscrn, 736K Mem. NL
BALANCED WHEELS
WF1000BF Flat Polyurethane, 1 Ft 851
WF1000BK Knurled Aluminum, 1 Ft 851
WHEELS
WF1000OF Flat Polyurethane, 1 Ft 851
WF1000OK Knurled Aluminum, 1 Ft 851
WF1000OR Neoprene, 1 Ft 851
WI0006OF Urethane, 6" 857
WI0006OK Knurled 6" 857
WM0200OF Urethane 200 mm Circumference 857
WM0200OK Knurled 200 mm Circumference 857
WM0333OF Flat Polyurethane, 1/3 Meter 851
WM0333OK Knurled Aluminum, 1/3 Meter 851
NOTE
NL = Available, but not listed in the catalog.
See the support section of our website.
Revised 01/01/2009

N
1030 www.redlion.net
PART NO. MODEL
NO. DESCRIPTION CAT
PAGE
WM0333OR Neoprene, 1/3 Meter 851
WM0400OF Flat Polyurethane, 4/10 Meter 851
WM0400OK Knurled Aluminum, 4/10 Meter 851
WM0400OR Neoprene, 4/10 Meter 851
WY0400OF Flat Polyurethane, 4/10 Yd 851
WY0400OK Knurled Aluminum, 4/10 Yd 851
WY0400OR Neoprene, 4/10 Yd 851
DSP/MODULAR CONTROLLER EXPANSION CARDS
XCCN0000 XC DSP/MC CANopen Option Card 58
XCDN0000 XC DSP/MC DeviceNet Option Card 59
XCGSM000 XC GSM/GPRS Modem Option Card for G3 60
XCPBDP00 XC DSP/MC Profibus DP Expansion Card 59
XCQANT00 XC Quad-band GSM/GPRS cellular antenna 60
XCRS0000 XC DSP/MC RS232/485 Card 58
SINGLE CHANNEL ROTARY PULSE GENERATORS
ZBG00602 ZBG 60 PPR 6-Pin MS Connector 851
ZBG01002 ZBG 100 PPR 6-Pin MS Connector 851
ZBG06002 ZBG 600 PPR 6-Pin MS Connector 851
ZBG10002 ZBG 1000 PPR 6-Pin MS Connector 851
ZBG12002 ZBG 1200 PPR 6-Pin MS Connector 851
ZBG01003 ZBG 100 PPR M12 Connector 851
ZBG06003 ZBG 600 PPR M12 Connector 851
DUAL CHANNEL ROTARY PULSE GENERATORS
ZBH00102 ZBH 10 PPR 6-Pin MS Connector 851
ZBH00122 ZBH 12 PPR 6-Pin MS Connector 851
ZBH01002 ZBH 100 PPR 6-Pin MS Connector 851
ZBH01202 ZBH 120 PPR 6-Pin MS Connector 851
ZBH05002 ZBH 500 PPR 6-Pin MS Connector 851
ZBH06002 ZBH 600 PPR 6-Pin MS Connector 851
ZBH01003 ZBH 100 PPR M12 Connector 851
ZBH06003 ZBH 600 PPR M12 Connector 851
SINGLE CHANNEL OUTPUT ROTARY PULSE GENERATORS
ZCG0001C ZCG 1 PPR 839
ZCG0010C ZCG 10 PPR 839
ZCG0012C ZCG 12 PPR 839
ZCG0060C ZCG 60 PPR 839
ZCG0100C ZCG 100 PPR 839
ZCG0120C ZCG 120 PPR 839
ZCG0200C ZCG 200 PPR 839
QUADRATURE OUTPUT ROTARY PULSE GENERATORS
ZCH0100C ZCH 100 PPR 843
ZCH0200C ZCH 200 PPR 843
ZCH0500C ZCH 500 PPR 843
2 INCH FLANGE MOUNT ROTARY PULSE GENERATORS
ZDH0060H ZDH 60 PPR 855
ZDH0100H ZDH 100 PPR 855
ZDH0500H ZDH 500 PPR 855
ZDH0600H ZDH 600 PPR 855
ZDH1000H ZDH 1000 PPR 855
ZDH1200H ZDH 1200 PPR 855
ZDH2000H ZDH 2000 PPR 855
ZDH2500H ZDH 2500 PPR 855
PART NO. MODEL
NO. DESCRIPTION CAT
PAGE
LENGTH SENSOR SINGLE SHAFT/SINGLE CHANNEL
ZFG0001C ZFG 1 Foot 839
ZFG0010C ZFG 10 PPR 839
ZFG0012C ZFG 12 PPR 839
ZFG0020C ZFG 20 PPR 839
ZFG0060C ZFG 60 PPR 839
ZFG0100C ZFG 100 PPR 839
ZFG0120C ZFG 120 PPR 839
ZFG0200C ZFG 200 PPR 839
ZFG00/3C ZFG 1 Meter/Yard 839
ZFG03/3C ZFG 10 Meter/Yard 839
ZFG33/3C ZFG 100 Meter/Yard 839
LENGTH SENSOR SINGLE SHAFT/QUADRATURE OUTPUT
ZFH0100C ZFH 100 PPR 843
ZFH0200C ZFH 200 PPR 843
ZFH0500C ZFH 500 PPR 843
LENGTH SENSOR DOUBLE SHAFT/SINGLE CHANNEL
ZGG0001C ZGG 1 Foot 839
ZGG0010C ZGG 10 PPR 839
ZGG0012C ZGG 12 PPR 839
ZGG0020C ZGG 20 PPR 839
ZGG0060C ZGG 60 PPR 839
ZGG0100C ZGG 100 PPR 839
ZGG0120C ZGG 120 PPR 839
ZGG0200C ZGG 200 PPR 839
ZGG00/3C ZGG 1 Meter/Yard 839
ZGG03/3C ZGG 10 Meter/Yard 839
LENGTH SENSOR DOUBLE SHAFT/QUADRATURE OUTPUT
ZGH0100C ZGH 100 PPR 843
ZGH0200C ZGH 200 PPR 843
ZGH0500C ZGH 500 PPR 843
HEAVY DUTY SINGLE CHANNEL ROTARY PULSE GENERATORS
ZHG06004 ZHG 600 PPR 851
ZHG10004 ZHG 1000 PPR 851
ZHG12004 ZHG 1200 PPR 851
LINEAR CABLE ENCODERS
ZLZ0050G ZLZ Quad output 50 PPI Standard Housing 859
ZLZ0500G ZLZ Quad output 500 PPI Standard Housing 859
MINIATURE LENGTH SENSORS WITH QUAD OUTPUT
ZMD0250B ZMD 250 PPR 857
ZMD0500B ZMD 500 PPR 857
ZMD1000B ZMD 1000 PPR 857
ZMD2000B ZMD 2000 PPR 857
ZMD2500B ZMD 2500 PPR 857
2.5 INCH FLANGE MOUNT ROTARY PULSE GENERATORS
ZNH0060H ZNH 60 PPR 855
ZNH0100H ZNH 100 PPR 855
ZNH0500H ZNH 500 PPR 855
ZNH0600H ZNH 600 PPR 855
ZNH1000H ZNH 1000 PPR 855
ZNH1200H ZNH 1200 PPR 855
ZNH2000H ZNH 2000 PPR 855
ZNH2500H ZNH 2500 PPR 855
THRU-BORE ROTARY PULSE GENERATORS
ZOD0060A ZOD 60 PPR 0.25 inch thru-bore 838
ZOD0100A ZOD 100 PPR 0.25 inch thru-bore 838
NOTE
NL = Available, but not listed in the catalog.
See the support section of our website.
Revised 01/01/2009

N
10311-717-767-6511
PART NO. MODEL
NO. DESCRIPTION CAT
PAGE
ZOD0500A ZOD 500 PPR 0.25 inch thru-bore 838
ZOD0600A ZOD 600 PPR 0.25 inch thru-bore 838
ZOD1000A ZOD 1000 PPR 0.25 inch thru-bore 838
ZOD1200A ZOD 1200 PPR 0.25 inch thru-bore 838
ZOD2000A ZOD 2000 PPR 0.25 inch thru-bore 838
ZOD2500A ZOD 2500 PPR 0.25 inch thru-bore 838
ZOH0060A ZOH 60 PPR 0.375 inch thru-bore 838
ZOH0100A ZOH 100 PPR 0.375 inch thru-bore 838
ZOH0500A ZOH 500 PPR 0.375 inch thru-bore 838
ZOH0600A ZOH 600 PPR 0.375 inch thru-bore 838
ZOH1000A ZOH 1000 PPR 0.375 inch thru-bore 838
ZOH1200A ZOH 1200 PPR 0.375 inch thru-bore 838
ZOH2000A ZOH 2000 PPR 0.375 inch thru-bore 838
ZOH2500A ZOH 2500 PPR 0.375 inch thru-bore 838
LARGE THRU-BORE ROTARY PULSE GENERATORS
ZPJ0060A ZPJ 60 PPR 849
ZPJ0100A ZPJ 100 PPR 849
ZPJ0500A ZPJ 500 PPR 849
ZPJ0600A ZPJ 600 PPR 849
ZPJ1000A ZPJ 1000 PPR 849
ZPJ1200A ZPJ 1200 PPR 849
ZPJ2000A ZPJ 2000 PPR 849
ZPJ2500A ZPJ 2500 PPR 849
C-FACE ENCODERS WITH NPN OPEN COLLECTOR OUTPUT
ZRJ0256A ZR 56C 256 PPR 836
ZRJ1024A ZR 56C 1024 PPR 836
ZRL0256A ZR 143TC, 145TC, 182C, 184C 256 PPR 836
ZRL1024A ZR 143TC, 145TC, 182C, 184C 1024 PPR 836
C-FACE ENCODERS WITH LINE DRIVER OUTPUT FOR MOTOR FEEDBACK
ZRJ1024R ZR 1024 PPR .625 inch bore 36 inch pigtail 829
ZRJ1024Z ZR 1024 PPR .625 inch bore MS 10-pin 829
ZRJ2048R ZR 2048 PPR .625 inch bore 36 inch pigtail 829
ZRJ2048Z ZR 2048 PPR .625 inch bore MS 10-pin 829
ZRL1024R ZR 1024 PPR 1 inch bore 36 inch pigtail 829
ZRL1024Z ZR 1024 PPR 1 inch bore MS 10-pin 829
ZRL2048R ZR 2048 PPR 1 inch bore 36 inch pigtail 829
ZRL2048Z ZR 2048 PPR 1 inch bore MS 10-pin 829
PART NO. MODEL
NO. DESCRIPTION CAT
PAGE
0.25 IN SHAFT STANDARD SERVO MOUNT ROTARY PULSE GENERATORS
ZSD0060A ZSD 60 PPR 837
ZSD0100A ZSD 100 PPR 837
ZSD0500A ZSD 500 PPR 837
ZSD0600A ZSD 600 PPR 837
ZSD1000A ZSD 1000 PPR 837
ZSD1200A ZSD 1200 PPR 837
ZSD2000A ZSD 2000 PPR 837
ZSD2500A ZSD 2500 PPR 837
LRG THRU-BORE ROTARY PULSE GENERATORS FOR MOTOR FEEDBACK
ZUJ1024Z ZUJ 1024 PPR 5/8 inch Thru-Bore 833
ZUJ2048Z ZUJ 2048 PPR 5/8 inch Thru-Bore 833
LARGE THRU-BORE ROTARY PULSE GENERATORS
ZUK0060H ZUK 60 PPR 1.125 inch Thru-Bore 847
ZUK0100H ZUK 100 PPR 1.125 inch Thru-Bore 847
ZUK0500H ZUK 500 PPR 1.125 inch Thru-Bore 847
ZUK0600H ZUK 600 PPR 1.125 inch Thru-Bore 847
ZUK1000H ZUK 1000 PPR 1.125 inch Thru-Bore 847
ZUK1200H ZUK 1200 PPR 1.125 inch Thru-Bore 847
ZUK2000H ZUK 2000 PPR 1.125 inch Thru-Bore 847
ZUK2500H ZUK 2500 PPR 1.125 inch Thru-Bore 847
LRG THRU-BORE ROTARY PULSE GENERATORS FOR MOTOR FEEDBACK
ZUL1024Z ZUL 1024 PPR 1 inch Thru-Bore 833
ZUL2048Z ZUL 2048 PPR 1 inch Thru-Bore 833
NOTE
NL = Available, but not listed in the catalog.
See the support section of our website.
Revised 01/01/2009

N
1032 www.redlion.net
This page intentionally left blank.

www.redlion.net
Complete technical data, customer support and free software.
Red Lion’s comprehensive web site offers complete product information and
technical specifications, as well as Crimson software, updated product
bulletins, technical and customer support, and contact information for your
local Red Lion distributor.
n Literature Downloads and Hardcopy Request: Access our comprehensive
library of product manuals, installation information, software manuals and application
notes online, and/or request hardcopies and catalogs delivered at no charge.
n Free Crimson® and Configuration Software: Download demos and the latest
revisions of the Red Lion Crimson® software, plus the device drivers, cable
specifications, DeviceNet EDS files and Profibus GSD files required for your application.
n Product Dimension Library: access free downloadable dimensioned drawings in
.dwg format, for easy import into your drawings.
n Product Cross Reference: Compare features and upgrade to Red Lion products from
other brands by entering part numbers into Red Lion’s Competitor Cross Reference.
n Virtual Help Desk: Use the Red Lion Virtual Help Desk to search our Knowledge
Base, browse through our Frequently Asked Questions (FAQ’s) for quick answers, read
Application Solutions to find out how Red Lion can solve your application or watch
Product Tutorials and Presentations.
n Training Resources: Learn about Red Lion’s comprehensive in-house and field
training programs, or use the web to join live product tutorials and presentations.
n Online Customer Service: Contact our Customer Service Department online for
answers on your schedule. Red Lion Customer Service Representatives are ready to
take your orders, check product availability and order status, handle literature
requests, and answer any ordering questions you may have.
n Lifetime Technical Support: Find the Red Lion Technical Support Team located
nearest you who will provide pre- or post-sales support on Red Lion products.
n Agency Approvals: Search our comprehensive database for information on UL,
CE, CSA and FM approvals for Red Lion’s products. View information on UL
recognized or rated products, RoHS-WEEE conformity and Hazardous Area approvals.
n Installation Tips: Learn valuable installation information including advice on
preventing noise interference in your industrial environment.
Red Lion solutions worldwide.
Red Lion Controls
A proud global member of Spectris.
Headquartered in York, Pennsylvania USA, Red Lion
provides strong support for international customers through
offices located in the Netherlands, China, and India, plus
over 850 distributors in 65 countries. Red Lion Controls is
a member of Spectris, the productivity-enhancing
instrumentation and controls company. With sales of £668
million in 2007 and employing approximately 5,500 people
worldwide in its 13 business units, Spectris is listed on the
London Stock Exchange (symbol: SXS) and is a founder
member of techMARK, the London Stock Exchange’s
index for technology companies. For more information on
Spectris, visit www.spectris.com
Red Lion’s global distribution network ensures the availability
of the same high-quality Red Lion solutions virtually
anywhere in the world. For single-source solutions locally
or technology deployment to multiple facilities around the
globe, Red Lion has the answers and products you need.
Free live application and technical assistance
at 717-767-6511
Red Lion’s commitment to customer service is second to
none. So when you have questions, you can talk to a real
person instead of a machine. Our customer service and
tech support staff stands ready to help you choose the
Red Lion product that meets the needs of your application,
and put you in touch with the local distributor who can
serve your needs personally.
Red Lion Controls
Worldwide Headquarters
20 Willow Springs Circle
York, PA 17406
USA
Phone: +1 (717) 767-6511
Fax: +1 (717) 764-0839
sales@redlion.net
Red Lion Controls
Europe, ME Africa
Printerweg 10
3821 AD Amersfoort
The Netherlands
Phone: +31 (0) 33-4723-225
Fax: +31 (0) 33-4893-793
europe@redlion.net
Toll Free from UK and France:
00800 REDLIONS
(00800 733 54667)
Red Lion Controls
India
54, Vishvas Tenement,
Near Railway Crossing
GST Road, New Ranip,
Ahmedabad-382480
Gujarat, India
Phone: +91 98795 40503
Fax: +91 79 27531350
india@redlion.net
Red Lion Controls
China
Unit 101, XinAn Plaza
Building 13
No.99 Tianzhou Road
ShangHai, P.R. China 200223
Phone: +86 21 6113-3688
Fax: +86 21 6113-3683
asia@redlion.net
SenSorS & encoderS
Signal ConditionerS
OperatOr Interfaces
digital & analog
panel meters
Protocol conversion
& communications
modular control &
data acquisition
Red Lion’s Data Station Plus provides a powerful set of data integration tools in a single DIN-rail mounted
box. With the ability to perform protocol conversion among any of over 170 protocols, the Data Station Plus
supports a minimum of seven protocols running and exchanging data simultaneously, over three serial and four
Ethernet™ ports. Additional serial ports or DeviceNet™, ProfibusDP, or CANopen/J1939 communications cards
can be added to further enhance protocol conversion capabilities. The Data Station Plus facilitates
communication to multiple PLCs, drives, motion controllers, HMIs, motor control products, breakers, SCADA
and PCs with a host of on-board drivers. A web-based HMI feature allows you to monitor and control processes
remotely via a web browser.
Red Lion’s Modular Controller series offers a cost-effective solution to integrating multi-zone PID control,
data acquisition and I/O into your PC, DCS or PLC control system. The Modular Controller product line has all
the communication, protocol conversion, data logging and web-based HMI capabilities of the Data Station Plus,
while adding the ability to manage up to 32 zones of PID control for analog and digital I/O. With capabilities to
handle high I/O counts between a minimum of 96 analog to a maximum of 224 digital I/O, the Modular
Controller supports up to 16 hot-swappable controller modules with automatic reprogramming, available with
configurations ranging from analog input and output, digital I/O, PID control, strain gage and temperature input.
Red Lion also offers a range of DIN rail mount Temperature and PID Loop Controllers and accessories.
The preferred brand for many years running, Red Lion has more high-quality Digital and Analog Panel Meter
solutions than any other supplier. Digitally display count, rate, time, voltage, current, process, strain gage and
temperature data in the widest range of models, sizes and capabilities—from Red Lion’s standard CUB family
to the versatile PAX family. Some models facilitate extended capabilities via plug-and-play, field-installable
cards, allowing users to easily add or change features including analog outputs, communication, setpoints and
more. To provide maximum visibility in plant floor and control room environments, Red Lion offers a number of
analog meters, counter, timer and rate panel meters featuring Large Displays that provide vastly improved
readability from distances, with display sizes from 1.5" to 4" and LED Graphical Displays up to 19" high.
Red Lion’s innovative G3 Series Human Machine Interface panels provide complete HMI functionality for
PLCs, motor drives and other communications-capable devices. G3 Series HMIs with integrated Ethernet ability
network-enable any serial device connected to the panel. G3 HMIs have the same data management features
as Red Lion’s Data Station series with the addition of an integrated LCD display or touchscreen in display sizes
ranging from 3" to 15". For applications that don’t require data logging or web-based HMI, Red Lion’s
G3 Kadet Series HMIs offers a similar set of capabilities including multiple serial ports, Ethernet connectivity,
visualization, protocol conversion and configuration using Red Lion’s free Crimson® software.
To modify existing signals into the desired format for an application, Red Lion manufactures a wide array of
Signal Conditioning Products that assure the proper interface and output. Input types range from RTD,
thermocouple, process, frequency, volt and current, and can convert to frequency and/or various analog outputs.
Communication conversions are also available. Features include 3-way isolation, sensor break detection,
programmable inputs, multiple input-to-output conversion combinations and loop power.
Red Lion offers a complete line of Sensors and Encoders to complement the multiple products that require
sensor inputs. Choose from photoelectric, proximity, pressure, thermocouple, RTD, magnetic pickup, shaft
encoders, thru-bore encoders, length sensors, temperature, and motor and gear sensors that provide seamless
integration with Red Lion products.
Red Lion product families
*Microsoft is a registered trademark of Microsoft Corporation in the United States and/or other countries. CompactFlash is a registered trademark of the CompactFlash Association.

SenSorS and encoderS
Signal ConditionerS
Protocol conversion
and communications
digital and analog
panel meters
OperatOr Interfaces
modular control and
data acquisition
Volume 23
Volume 23
Insight Enabled
Advanced HMIs with integrated Ethernet and web
connectivity control and monitor multiple devices, and
large LED displays communicate to the plant floor.
• G3 Series HMIs: Full-featured OI terminals
• G3 Kadet ™ Series HMIs: value
and essential HMI features
• Plant Floor Marquee and
Big Flexible Display:
LED display boards with
advanced connectivity
Modular Controller Series: Versatile multi-loop and data
acquisition platform with protocol conversion, web server
and Ethernet connectivity and more.
Base- or DIN-rail mounted devices for conversion or isolation featuring
microprocessor-based configuration and minimal drift.
• IAMS Universal Signal Conditioners
– Frequency Inputs
– Process Inputs
– Temperature Inputs
The trusted and preferred brand of digital and analog panel meters in the widest
range of models, sizes and capabilities, from our basic CUB indicators to versatile PAX
process meters that let you change capabilities
with plug-and-play, field installable cards.
• Counters, Rate Meters, Timers
• Current, Process, Voltage, Strain Gage
• Large Displays for all of the above
• Temperature; on/off, PID, limit alarm
Known worldwide as the undisputed leader in digital and analog
panel meters, Red Lion has also gained acclaim for innovations in
operator interface panels, protocol conversion, device-level fieldbus and LAN/WAN
communications, data logging, PID controllers and signal conditioning devices.
Red Lion products enable insight into your process like no other.
Red Lion’s extensive line of sensors and encoders let you complete
your application without going to additional providers.
• Encoders
• Magnetic pick-ups
• Proximity sensors
• Photoelectric sensors
• Rotary pulse generators
• Length sensors
OperatOr Interfaces & DIspLaYs
modular control & data acquisition
Signal ConditionerS
digital and analog panel meters
Protocol conversion and communications
SenSorS and encoderS
Red Lion Controls ph: (717) 767-6511 fax: (717) 764-0839 www.redlion.net
Operator Interface
Protocol Conversion
Signal Conditioning
Panel Meters
Data Acquisition
• Data Station® Plus Series: Powerful and
versatile data management platform
with web-enabled communications,
data logging and protocol conversion
• PID modules
• Analog and digital I/O
• Communication modules
• Strain gage
• Temperature input
Perform protocol conversion among any of over 170 protocols.
Innovative operator interface,
measurement, monitoring
and control solutions
Operator Interface • Panel Meters • Data Acquisition
Innovative Control Solutions
Protocol Conversion • Signal Conditioning • Sensors