Specifiers Guide Chapter 14 105476 Catalog
57343-Catalog 57343-Catalog 57343-Catalog 783510 Batch8 unilog cesco-content
57343-Catalog 57343-Catalog 57343-Catalog Batch8 unilog cesco-content
2014-09-05
: Pdf 105476-Catalog 105476-Catalog 783510 Batch7 unilog
Open the PDF directly: View PDF .
Page Count: 132 [warning: Documents this large are best viewed by clicking the View PDF Link!]
- Condensation and Pressure Compensation
- Panels and Panel Accessories
- Panels for Enclosures
- Perforated Panels
- Panels for Junction Boxes
- Composite Panels for Junction Boxes and UL/NEMA Wall-Mount Enclosures
- Junction Box and Wall-Mount Enclosure Swing-Out Panel Kit
- Panels for Type 1 Enclosures and Small Type 3R Enclosures
- Panels for Medium Type 1 Enclosures
- Panels for Type 3R, 4, 4X, 12 and 13 Enclosures
- Panels for Large Bulletin A27, A28, A28S4 and A34 Multi-Door Enclosures
- Panels for Free-Stand Type 1 Large One-Door Enclosures
- Panels for Free-Stand Type 1 Large Two-Door Enclosures
- Panels for Free-Stand Type 4, 4X and 12 Single- and Dual-Access One-Door Enclosures with Mounting Channel
- Panels for Free-Stand Type 4, 4X and 12 Single- and Dual-Access Two-Door Enclosures with Mounting Channel
- Side-Mounted Panels
- Heavy Duty Panel Supports
- Center Panel Supports
- Swing-Out Panels for Free-Stand Type 4, 4X and 12 Enclosures with Mounting Channel
- Panels for WiFi Cabinets and Small Wall-Mount Enclosures
- Panels for Open Frame Racks
- Panel Accessories
- Panels for Enclosures
- Window Kits
- Door Accessories
- Shelves, Keyboard Trays and Gland Plates
- Folding Shelves
- Shelves for Open Frame Racks
- Double-Sided Solid Aluminum Shelf
- Double-Sided, Solid Aluminum, Heavy Duty Shelf
- Single-Sided Solid Aluminum Shelf
- Single-Sided Solid-Steel Shelf
- Single-Sided Steel Vented Shelf
- Double-Sided Solid-Steel Shelf
- Double-Sided Steel Vented Shelf
- Center-Mount Steel Shelves
- Rack-Mount Steel Shelf
- Adjustable Steel Vented Shelf
- Pullout Keyboard Tray with Monitor Shelf
- Pull-Out Shelf for Mini Keyboard
- Shelves for Racks and Cabinets
- Pivoting Keyboard Shelf with Mouse Tray
- Steel Keyboard/Monitor Shelf
- Pull-Out Shelf for Mini Keyboard
- Rack-Mount Adjustable Shelf
- Tool-less Shelf
- Single-Sided Shelf
- Sliding Equipment Shelf
- Cable Manager Arm for Sliding Equipment Shelf
- Keyboard Compartment for 19-in. Racks
- Writing Surface for Rack-Angle-Mounted Drawer
- Rack-Angle Mounted Drawer
- Fixed Shelf
- 19-in. Fixed Shelf
- Pull-Out Shelves
- Drawers
- Gland Plates
- Locks, Lockouts, Latches, Handles and Clamps
- Drip Shields
- Hole Seals
- Corrosion Inhibitors
- Electrical Accessories
- Terminal Block Kits
- Terminal Block Kit Assembly for Junction Boxes Overview
- Terminal Block Bracket Assemblies for Junction Boxes
- Terminal Box Straps for Junction Boxes
- Terminal Block Strips for Junction Boxes
- Bracket Assembly for Type 4, 12 and 13 Enclosures
- Terminal Block Kit Assembly for Type 4, 12 and 13 Enclosures Overview
- Terminal Straps for Type 4, 12 and 13 Enclosures
- Terminal Strap Support Kit
- Grounding
- Electrical Interlocks
- Lighting Packages
- PANELITE™ Enclosure Lights Overview
- PANELITE™ LED Enclosure Light
- PANELITE™ Fluorescent Enclosure Light
- PANELITE™ Power Cords
- PANELITE™ Power Cable with Leads
- PANELITE™ Ganging Cables
- PANELITE™ Door Switch Cable
- PANELITE™ Remote Door Switches
- PANELITE™ Wiring Options
- Mounting Bracket Kit for Light Package
- Remote Switches for Light Package
- Power Distribution Units
- Terminal Block Kits
- Mounting Accessories
- Mounting Kits
- Legs and Casters
- Fasteners
- Rack-Mount Accessories
- Guides
- Slides
- Fan Speed Control, Rack-Mount
- Joining Kit
- Panel Adapter
- Rack Unit Label
- Mobile Base for Open Frame Racks
- 19-in. Rack-Mount/Desktop Case, Type 1
- Swing-Out Rack Mounting Frames
- 19-in. and 23-in. Rack Angles
- Rack Mounting Angles - U Style (Type RA)
- Rack Mounting Angles - L Style (Type RP)
- Rack Mounting Angle Kit - L Style
- INTERSAFE® Data Interface Ports
- INTERSAFE® Data Interface Ports, Type 4/4X/12
- INTERSAFE® Data Interface Ports, Type 4/4X/12
- INTERSAFE® Data Ports for ControlNet Protocol
- INTERSAFE® Data Interface Ports for Data Highway Plus Protocol
- INTERSAFE® Data Interface Ports for DeviceNet Protocol
- INTERSAFE® Data Interface Ports for DH+, ModBus Plus, Ethernet Protocol
- INTERSAFE® Data Interface Ports for Ethernet Protocol
- INTERSAFE® Data Interface Ports for Ethernet/ProfiNet Protocol
- INTERSAFE® Data Interface Ports for Genius Protocol
- INTERSAFE® Data Interface Ports for Micro Protocol
- INTERSAFE® Data Interface Ports for Modbus Protocol
- INTERSAFE® Data Interface Ports for Profibus Protocol
- INTERSAFE® Data Interface Ports for SNP Protocol
- INTERSAFE® Data Interface Ports for USB Protocol, 10-ft. Cable
- INTERSAFE® Type 4/4X/12 Data Interface Port Disk Drive Enclosure
- To Order a Modified Configuration for INTERSAFE® Type 4/4X/12 Data Interface Ports
- INTERSAFE® Connector 8M
- INTERSAFE® Connector 9FG
- INTERSAFE® Connector 9FT
- INTERSAFE® Connector 9M
- INTERSAFE® Connector 9MT
- INTERSAFE® Connector 15F
- INTERSAFE® Connector 15FT
- INTERSAFE® Connector 15H
- INTERSAFE® Connector 15M
- INTERSAFE® Connector 25F
- INTERSAFE® Connector 25FT
- INTERSAFE® Connector 25M
- INTERSAFE® Connector 25MT
- INTERSAFE® Connector BNC
- INTERSAFE® Connector CN
- INTERSAFE® Connector DH
- INTERSAFE® Connector DNM
- INTERSAFE® Connector DNP
- INTERSAFE® Connector DPO
- INTERSAFE® Connector DP3
- INTERSAFE® Connector DP5
- INTERSAFE® Connector ETH
- INTERSAFE® Connector GEG
- INTERSAFE® Connector GFO
- INTERSAFE® Connector GF3
- INTERSAFE® Connector GF5
- INTERSAFE® Connector MCL
- INTERSAFE® Connector MCL8
- INTERSAFE® Connector MD6
- INTERSAFE® Connector MD8
- INTERSAFE® Connector PB
- INTERSAFE® Connector R11
- INTERSAFE® Connector RJS
- INTERSAFE® Connector SNP
- INTERSAFE® Connector SPO
- INTERSAFE® Connector SP3
- INTERSAFE® Connector SP5
- INTERSAFE® Connector TMB
- INTERSAFE® Connector TMM
- INTERSAFE® Connector USB
- INTERSAFE® Data Interface Ports, Type 4/4X/12
- EMC Accessories
- INLINE® Accessories
- CONCEPT® Accessories

1286
:
PH (763) 422-2211 • FX (763) 422-2600 • homanonline.com
Subject to change without notice © 2011 Pentair Technical Products
PH (763) 422-2211
FX (763) 422-2600
Accessories
CHAPTER
14
Featured
Products
in this
Chapter
▶ HOMIT™ Vent Drains,
Type 4X P. 1290
▶ HOMIT™ Thermoelectric
Dehumidier P. 1292
▶ Pressure Compensation
Device P. 1295
▶ HOL-SEALERS™
Non-Metallic Hole Seals P. 1342
▶ INTERSAFE® Data Interface
Ports, Type 4/4X/12 P. 1384
CHS Controls AB
Florettgatan 33
SE-254 67 Helsingborg, Sweden
Tel +46 42 38 61 00, Fax +46 42 38 61 29
chs@chscontrols.se
www.chscontrols.se

1287
:
PH (763) 422-2211 • FX (763) 422-2600 • homanonline.com
Subject to change without notice © 2011 Pentair Technical Products
14
CHAPTER CONTENTS
Condensation and Pressure Compensation
Condensation and Pressure Compensation Devices
H2OMIT® Vent Drains, Type 4X . . . . . . . . . . . . . . . . . . . . . . . . . . . . . . . . . 1290
H2OMIT® Thermoelectric Dehumidier . . . . . . . . . . . . . . . . . . . . . . . . . 1292
Stainless Steel Pressure Compensation Device . . . . . . . . . . . . . . . . . . 1294
Pressure Compensation Device . . . . . . . . . . . . . . . . . . . . . . . . . . . . . . . . 1295
Panels and Panel Accessories
Panels for Enclosures
Perforated Panels .............................................. 1296
Panels for Junction Boxes ...................................... 1298
Composite Panels for Junction Boxes and UL/NEMA
Wall-Mount Enclosures ....................................... 1299
Junction Box and Wall-Mount Enclosure Swing-Out Panel Kit . . . 1300
Panels for Type 1 Enclosures and Small Type 3R Enclosures . . . . . 1301
Panels for Medium Type 1 Enclosures . . . . . . . . . . . . . . . . . . . . . . . . . . 1301
Panels for Type 3R, 4, 4X, 12 and 13 Enclosures . . . . . . . . . . . . . . . . . . 1302
Panels for Large Bulletin A27, A28, A28S4 and A34 Multi-Door
Enclosures ................................................... 1304
Panels for Free-Stand Type 1 Large One-Door Enclosures . . . . . . . 1305
Panels for Free-Stand Type 1 Large Two-Door Enclosures . . . . . . . 1305
Panels for Free-Stand Type 4, 4X and 12 Single- and
Dual-Access One-Door Enclosures with Mounting Channel . . . . 1306
Panels for Free-Stand Type 4, 4X and 12 Single- and Dual-Access
Two-Door Enclosures with Mounting Channel . . . . . . . . . . . . . . . . 1307
Side-Mounted Panels .......................................... 1308
Heavy Duty Panel Supports .................................... 1308
Center Panel Supports .........................................1309
Swing-Out Panels for Free-Stand Type 4, 4X and 12 Enclosures
with Mounting Channel .......................................1311
Panels for WiFi Cabinets and Small Wall-Mount Enclosures . . . . . .1311
Panels for Open Frame Racks
Rack Panel for 19-in. Racks ......................................1312
Tool-less (Snap-in) Blanking Panels for 19-in. Racks . . . . . . . . . . . . . .1312
Rack Panels .....................................................1313
Panel Accessories
Panel Lifting Hooks .............................................1314
Panel Support Kit ...............................................1314
Window Kits
Window Kits
Steel and Stainless Steel Window Kits . . . . . . . . . . . . . . . . . . . . . . . . . . .1315
Wing Knobs for CONCEPT® Window Kits . . . . . . . . . . . . . . . . . . . . . . . . .1316
Frameless Window Kit ..........................................1316
CONCEPT® Fixed and Hinged Window Kits . . . . . . . . . . . . . . . . . . . . . .1316
Type 12 Hinged Window Kit .....................................1317
CONCEPT® Deep Hinged Window Kit . . . . . . . . . . . . . . . . . . . . . . . . . . . .1317
Type 4 and 4X Deep-Hinged Window Kits . . . . . . . . . . . . . . . . . . . . . . .1318
Door Accessories
Door Stops
Door Stop Kit .................................................. 1320
Type 316 Stainless Steel Door Stop Kit . . . . . . . . . . . . . . . . . . . . . . . . . . 1320
Large Enclosure Door Stop Kit . . . . . . . . . . . . . . . . . . . . . . . . . . . . . . . . . . 1320
Data Pockets
Thermoplastic Data Pocket .....................................1321
Metal Data Pocket ..............................................1321
External Data Pockets, Type 4/4X/12 . . . . . . . . . . . . . . . . . . . . . . . . . . . 1322
Shelves, Keyboard Trays and Gland Plates
Folding Shelves
Stainless Steel Folding Shelf. . . . . . . . . . . . . . . . . . . . . . . . . . . . . . . . . . . . 1324
Large Folding Shelf ............................................ 1324
Shelves for Open Frame Racks
Double-Sided Solid Aluminum Shelf . . . . . . . . . . . . . . . . . . . . . . . . . . . 1325
Double-Sided, Solid Aluminum, Heavy Duty Shelf . . . . . . . . . . . . . . 1325
Single-Sided Solid Aluminum Shelf . . . . . . . . . . . . . . . . . . . . . . . . . . . . . 1325
Single-Sided Solid-Steel Shelf . . . . . . . . . . . . . . . . . . . . . . . . . . . . . . . . . . 1325
Single-Sided Steel Vented Shelf . . . . . . . . . . . . . . . . . . . . . . . . . . . . . . . . 1326
Double-Sided Solid-Steel Shelf . . . . . . . . . . . . . . . . . . . . . . . . . . . . . . . . . 1326
Double-Sided Steel Vented Shelf . . . . . . . . . . . . . . . . . . . . . . . . . . . . . . . 1326
Center-Mount Steel Shelves .................................... 1326
Rack-Mount Steel Shelf ........................................ 1327
Adjustable Steel Vented Shelf . . . . . . . . . . . . . . . . . . . . . . . . . . . . . . . . . . 1327
Pullout Keyboard Tray with Monitor Shelf . . . . . . . . . . . . . . . . . . . . . . 1327
Pull-Out Shelf for Mini Keyboard . . . . . . . . . . . . . . . . . . . . . . . . . . . . . . . 1327
Shelves for Racks and Cabinets
Pivoting Keyboard Shelf with Mouse Tray . . . . . . . . . . . . . . . . . . . . . . 1328
Steel Keyboard/Monitor Shelf . . . . . . . . . . . . . . . . . . . . . . . . . . . . . . . . . . 1328
Pull-Out Shelf for Mini Keyboard . . . . . . . . . . . . . . . . . . . . . . . . . . . . . . . 1328
Rack-Mount Adjustable Shelf . . . . . . . . . . . . . . . . . . . . . . . . . . . . . . . . . . 1329
Tool-less Shelf ................................................. 1329
Single-Sided Shelf ............................................. 1330
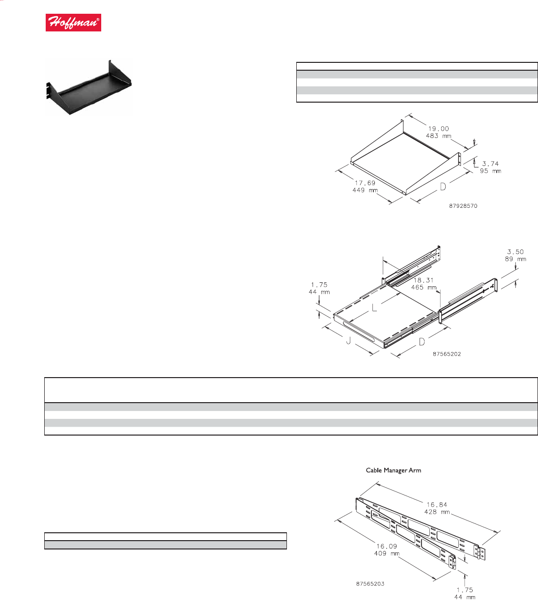
Sliding Equipment Shelf ....................................... 1330
Cable Manager Arm for Sliding Equipment Shelf . . . . . . . . . . . . . . . 1330
Keyboard Compartment for 19-in. Racks . . . . . . . . . . . . . . . . . . . . . . . .1331
Writing Surface for Rack-Angle-Mounted Drawer . . . . . . . . . . . . . . . .1331
Rack-Angle Mounted Drawer ...................................1331
Fixed Shelf. . . . . . . . . . . . . . . . . . . . . . . . . . . . . . . . . . . . . . . . . . . . . . . . . . . . . 1332
19-in. Fixed Shelf .............................................. 1332
Pull-Out Shelves ............................................... 1332
Drawers
Drawers ....................................................... 1333
CONCEPT® Keyboard Box ...................................... 1333
Gland Plates
16 Gauge Gland Plate .......................................... 1334
12 Gauge Gland Plate .......................................... 1334
Locks, Lockouts, Latches, Handles and Clamps
Locks
Padlock Kit for Junction Boxes . . . . . . . . . . . . . . . . . . . . . . . . . . . . . . . . . 1336
Replacement Keys ............................................. 1336
Lock Kit for Clamp Cover Junction Boxes . . . . . . . . . . . . . . . . . . . . . . . 1336
Lock Kit for Type 3R and 12 Enclosures . . . . . . . . . . . . . . . . . . . . . . . . . 1336
Lockouts
Safety Lockouts ................................................ 1337
Dual-Access Safety Lockouts ................................... 1337
Latches
T-Handle Latch and Keyed Cylinder Lock Kits . . . . . . . . . . . . . . . . . . . 1338
Toggle Latch for Type 4 and 4X Floor-Mount and Free-Stand
Enclosures ................................................... 1338
Latch Kit for One-Door Type 12 Enclosures . . . . . . . . . . . . . . . . . . . . . 1338
Latch Kits for Type 4 and 12 Enclosures . . . . . . . . . . . . . . . . . . . . . . . . . 1338
Continued on next page
CHS Controls AB
Florettgatan 33
SE-254 67 Helsingborg, Sweden
Tel +46 42 38 61 00, Fax +46 42 38 61 29
chs@chscontrols.se
www.chscontrols.se

1288
:
PH (763) 422-2211 • FX (763) 422-2600 • homanonline.com
Subject to change without notice © 2011 Pentair Technical Products
PH (763) 422-2211
FX (763) 422-2600
CHAPTER CONTENTS CONTINUED 14
Handles
POWERGLIDE® Handles ........................................ 1339
Handle Kit ..................................................... 1339
POWERGLIDE® Defeater Handle Kit . . . . . . . . . . . . . . . . . . . . . . . . . . . . . 1339
Handles ....................................................... 1339
Clamps
Fast-Operating Clamp-Cover Junction Box Clamp . . . . . . . . . . . . . . 1340
Fast-Operating Clamp Assembly . . . . . . . . . . . . . . . . . . . . . . . . . . . . . . . 1340
Clamp Kits .....................................................1340
Clamp Block Kit ................................................1340
Drip Shields
Drip Shields
Drip Shield Kit for Type 12 Enclosures . . . . . . . . . . . . . . . . . . . . . . . . . . 1341
Stainless Steel Drip Shield Kit for Type 4 and 4X Wall-Mount
Enclosures ................................................... 1341
Hole Seals
Hole Seals
HOL-SEALERS® Hole Seals ...................................... 1342
HOL-SEALERS® Non-Metallic Hole Seals. . . . . . . . . . . . . . . . . . . . . . . . . 1344
Corrosion Inhibitors
Corrosion Inhibitors
Industrial Corrosion Inhibitors . . . . . . . . . . . . . . . . . . . . . . . . . . . . . . . . . 1346
Epoxy Patch Kit ................................................ 1347
Touch-Up Paint ................................................ 1347
Electrical Accessories
Terminal Block Kits
Terminal Block Kit Assembly for Junction Boxes Overview . . . . . . 1348
Terminal Block Bracket Assemblies for Junction Boxes . . . . . . . . . . 1349
Terminal Box Straps for Junction Boxes . . . . . . . . . . . . . . . . . . . . . . . . . 1349
Terminal Block Strips for Junction Boxes . . . . . . . . . . . . . . . . . . . . . . . . 1349
Bracket Assembly for Type 4, 12 and 13 Enclosures . . . . . . . . . . . . . . 1350
Terminal Block Kit Assembly for Type 4, 12 and 13 Enclosures
Overview. . . . . . . . . . . . . . . . . . . . . . . . . . . . . . . . . . . . . . . . . . . . . . . . . . . . . 1350
Terminal Straps for Type 4, 12 and 13 Enclosures . . . . . . . . . . . . . . . . 1351
Terminal Strap Support Kit ..................................... 1351
Grounding
DIN Type Rails ................................................. 1352
Grounding Device ............................................. 1352
Grounding Bar System ......................................... 1352
PROLINE® Grounding Kit ....................................... 1353
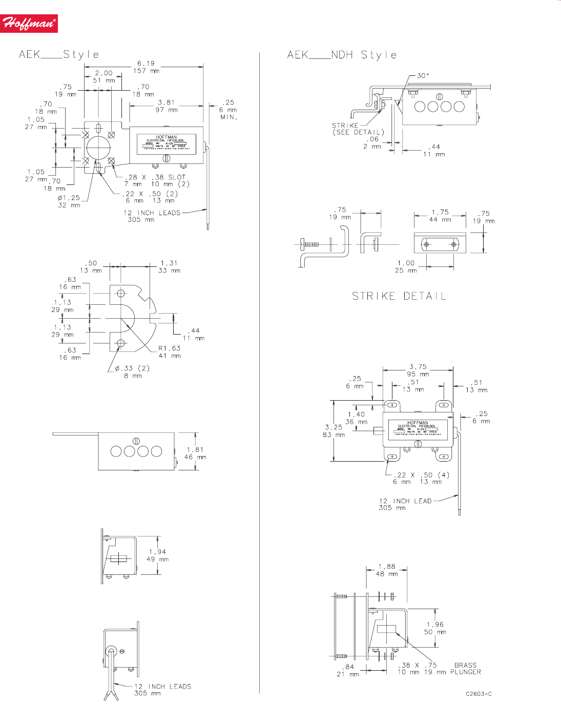
Electrical Interlocks
Electrical Interlocks ............................................ 1354
Electrical Interlock Defeater . . . . . . . . . . . . . . . . . . . . . . . . . . . . . . . . . . . . 1356
Panel Interface Connector ..................................... 1356
Lighting Packages
PANELITE™ Enclosure Lights Overview . . . . . . . . . . . . . . . . . . . . . . . . . 1358
PANELITE™ LED Enclosure Light . . . . . . . . . . . . . . . . . . . . . . . . . . . . . . . . 1359
PANELITE™ Fluorescent Enclosure Light . . . . . . . . . . . . . . . . . . . . . . . . 1359
PANELITE™ Power Cords ....................................... 1360
PANELITE™ Power Cable with Leads . . . . . . . . . . . . . . . . . . . . . . . . . . . . 1360
PANELITE™ Ganging Cables ....................................1360
PANELITE™ Door Switch Cable . . . . . . . . . . . . . . . . . . . . . . . . . . . . . . . . . 1360
PANELITE™ Remote Door Switches . . . . . . . . . . . . . . . . . . . . . . . . . . . . . 1361
PANELITE™ Wiring Options ..................................... 1361
Mounting Bracket Kit for Light Package . . . . . . . . . . . . . . . . . . . . . . . . 1362
Remote Switches for Light Package . . . . . . . . . . . . . . . . . . . . . . . . . . . . 1362
Power Distribution Units
Rack- and Panel-Mount Power Distribution Units (PDUs) . . . . . . . 1364
IEC Cord Sets .................................................. 1365
IEC C-13 Retaining Clip ......................................... 1365
Rack-Mount PDU Bracket ...................................... 1365
Mounting Accessories
Mounting Kits
Mounting Bracket Kits .........................................1366
ULTRX® Mounting Bracket Kit . . . . . . . . . . . . . . . . . . . . . . . . . . . . . . . . . . 1366
Pole-Mount Kit ................................................1366
Bottom Support Kit ............................................ 1367
Unistrut Mounting Kit .......................................... 1367
Enclosure Stabilizers ........................................... 1367
Floor Stand Kit ................................................. 1368
Legs and Casters
Caster Kit ...................................................... 1370
Plate Casters ................................................... 1370
Sanitary Leg Kits ............................................... 1371
Stainless Steel Legs ............................................ 1371
Fasteners
Screw Packages ................................................ 1372
VELCRO® Cable Wrap .......................................... 1372
Tamper-Resistant Screws ...................................... 1372
Cage Nut Package ............................................. 1373
Clip Nut Package .............................................. 1373
PROLINE® Fastener Packages ................................... 1373
Fastener Package .............................................. 1373
Clamping Nut Package ......................................... 1373
Rack-Mount Accessories
Guides .........................................................1374
Slides ...........................................................1374
Fan Speed Control, Rack-Mount . . . . . . . . . . . . . . . . . . . . . . . . . . . . . . . . 1375
Joining Kit ..................................................... 1375
Panel Adapter ................................................. 1375
Rack Unit Label .................................................1376
Mobile Base for Open Frame Racks . . . . . . . . . . . . . . . . . . . . . . . . . . . . . .1376
19-in. Rack-Mount/Desktop Case, Type 1 . . . . . . . . . . . . . . . . . . . . . . . 1377
Swing-Out Rack Mounting Frames . . . . . . . . . . . . . . . . . . . . . . . . . . . . . 1378
19-in. and 23-in. Rack Angles . . . . . . . . . . . . . . . . . . . . . . . . . . . . . . . . . . . 1379
Rack Mounting Angles - U Style (Type RA) . . . . . . . . . . . . . . . . . . . . . . 1379
Rack Mounting Angles - L Style (Type RP) . . . . . . . . . . . . . . . . . . . . . . . 1381
Rack Mounting Angle Kit - L Style . . . . . . . . . . . . . . . . . . . . . . . . . . . . . . 1383
INTERSAFE® Data Interface Ports
INTERSAFE® Data Interface Ports, Type 4/4X/12
INTERSAFE® Data Interface Ports, Type 4/4X/12 . . . . . . . . . . . . . . . . . 1384
INTERSAFE® Data Ports for ControlNet Protocol . . . . . . . . . . . . . . . . . 1385
INTERSAFE® Data Interface Ports for Data Highway Plus
Protocol ...................................................... 1386
INTERSAFE® Data Interface Ports for DeviceNet Protocol . . . . . . . . 1387
INTERSAFE® Data Interface Ports for DH+, ModBus Plus, Ethernet
Protocol ...................................................... 1388
INTERSAFE® Data Interface Ports for Ethernet Protocol . . . . . . . . . . 1389
INTERSAFE® Data Interface Ports for Ethernet/ProNet Protocol 1390
INTERSAFE® Data Interface Ports for Genius Protocol . . . . . . . . . . . 1391
INTERSAFE® Data Interface Ports for Micro Protocol . . . . . . . . . . . . . 1392
INTERSAFE® Data Interface Ports for Modbus Protocol . . . . . . . . . . 1393
INTERSAFE® Data Interface Ports for Probus Protocol . . . . . . . . . . 1394
CHS Controls AB
Florettgatan 33
SE-254 67 Helsingborg, Sweden
Tel +46 42 38 61 00, Fax +46 42 38 61 29
chs@chscontrols.se
www.chscontrols.se

1289
:
PH (763) 422-2211 • FX (763) 422-2600 • homanonline.com
Subject to change without notice © 2011 Pentair Technical Products
INTERSAFE® Data Interface Ports for SNP Protocol . . . . . . . . . . . . . . 1395
INTERSAFE® Data Interface Ports for USB Protocol, 10-ft. Cable . . 1396
INTERSAFE® Type 4/4X/12 Data Interface Port Disk Drive
Enclosure .................................................... 1397
To Order a Modied Conguration for INTERSAFE®
Type 4/4X/12 Data Interface Ports . . . . . . . . . . . . . . . . . . . . . . . . . . . . . 1397
INTERSAFE® Connector 8M ..................................... 1398
INTERSAFE® Connector 9FG .................................... 1398
INTERSAFE® Connector 9FT .................................... 1398
INTERSAFE® Connector 9M ..................................... 1398
INTERSAFE® Connector 9MT .................................... 1398
INTERSAFE® Connector 15F .................................... 1399
INTERSAFE® Connector 15FT ................................... 1399
INTERSAFE® Connector 15H .................................... 1399
INTERSAFE® Connector 15M .................................... 1399
INTERSAFE® Connector 25F .................................... 1399
INTERSAFE® Connector 25FT ...................................1400
INTERSAFE® Connector 25M ....................................1400
INTERSAFE® Connector 25MT ..................................1400
INTERSAFE® Connector BNC ....................................1400
INTERSAFE® Connector CN .....................................1400
INTERSAFE® Connector DH ..................................... 1401
INTERSAFE® Connector DNM ................................... 1401
INTERSAFE® Connector DNP ................................... 1401
INTERSAFE® Connector DPO ................................... 1401
INTERSAFE® Connector DP3 .................................... 1402
INTERSAFE® Connector DP5 .................................... 1402
INTERSAFE® Connector ETH .................................... 1402
INTERSAFE® Connector GEG .................................... 1402
INTERSAFE® Connector GFO .................................... 1403
INTERSAFE® Connector GF3 ....................................1403
INTERSAFE® Connector GF5 ....................................1403
INTERSAFE® Connector MCL ...................................1404
INTERSAFE® Connector MCL8 ..................................1404
INTERSAFE® Connector MD6 ...................................1404
INTERSAFE® Connector MD8 ...................................1404
INTERSAFE® Connector PB .....................................1405
INTERSAFE® Connector R11 ....................................1405
INTERSAFE® Connector RJS. . . . . . . . . . . . . . . . . . . . . . . . . . . . . . . . . . . . . 1405
INTERSAFE® Connector SNP ....................................1405
INTERSAFE® Connector SPO ....................................1406
INTERSAFE® Connector SP3 ....................................1406
INTERSAFE® Connector SP5 ....................................1406
INTERSAFE® Connector TMB. . . . . . . . . . . . . . . . . . . . . . . . . . . . . . . . . . . . 1406
INTERSAFE® Connector TMM ................................... 1407
INTERSAFE® Connector USB .................................... 1407
EMC Accessories
EMC Accessories
Bonding Cable Clamps .........................................1408
EMC Cable Strain Reliefs .......................................1408
Bonding Straps ................................................1408
INLINE® Accessories
INLINE® Accessories
Lock Inserts .....................................................1410
INLINE® Panels ..................................................1410
INLINE® Landscape Panels ......................................1410
Mounting-Bracket Kit ...........................................1410
Wing Knob Latch ...............................................1411
DIN3 Type Rails .................................................1411
Grounding Kit ..................................................1411
DIN Rail or Panel-Mounting Brackets . . . . . . . . . . . . . . . . . . . . . . . . . . . .1411
CONCEPT® Accessories
CONCEPT® Accessories
CONCEPT® Panel Conversion Kit . . . . . . . . . . . . . . . . . . . . . . . . . . . . . . . . .1412
Swing-Out Rack Frame ..........................................1412
Pole-Mount Kit .................................................1412
Mounting Channels .............................................1412
Rack-Mount Angles .............................................1413
DIN3 Rail Kits ...................................................1413
CONCEPT® Panels ...............................................1414
CONCEPT® Swing-Out Panels ...................................1415
CONCEPT® Adapter Bracket .....................................1415
Handles ........................................................1415
Door Stop Kit ...................................................1416
Data Pockets ...................................................1416
Lock Inserts .....................................................1416
Mounting-Bracket Kits ..........................................1416
Hinge Pins ......................................................1417
Door Bars .......................................................1417
CHS Controls AB
Florettgatan 33
SE-254 67 Helsingborg, Sweden
Tel +46 42 38 61 00, Fax +46 42 38 61 29
chs@chscontrols.se
www.chscontrols.se

1290
Accessories: Condensation and Pressure Compensation
Condensation and Pressure Compensation Devices
PH (763) 422-2211 • FX (763) 422-2600 • homanonline.com
Subject to change without notice © 2011 Pentair Technical Products
Accessories
Condensatio n and Pressu re Compensa tion
Condensatio n and Pressu re Compensa tion Devic es
H2OMIT® Vent Drains, Type 4X
Industry Standards
Maintains UL/cUL Type 4, 4X rating when properly installed on a UL/cUL
Type4 or 4X enclosure.
UL 508A Listed; Type 4, 4X; File No. E61997
cUL Listed per CSA C22.2 No 94; Type 4, 4X; File No. E61997
NEMA/EEMAC Type 4, 4X
Application
H2OMIT® Vent Drains allow accumulated water to drain out the
bottom of an enclosure. The UL-approved vent drains also function
as an air pressure equalizer, reducing the harmful eects of
temperature-induced vacuums that could pull water and moisture
into the enclosure.
Features
• Uses gravity to remove collected liquids
• One-way mechanical shut-o when pressure is equalized prevents
water and contaminants from entering the enclosure
• Helps reduce corrosion that can limit the life of internal electrical
and electronic components
• Installs in a 7/8-in. hole in the bottom of enclosure with provided
nut or in a 1/2-in. NPT/NPS threaded conduit hub
• Installs in the bottom of mild steel, aluminum, stainless steel or
non-metallic enclosures
• Maintains enclosure’s UL Type rating when properly installed
Specications
Stainless Steel Vent Drain
• Corrosion-resistant polyester material with a Type 304 stainless
steel sleeve
• 2.00-in. long x 1.38-in outside diameter
Non-Metallic Drain Vent
• Corrosion-resistant polyester material
• 2.00-in. long x 1.25-in. outside diameter
Bulletin: H2O
Standard Product
Catalog Number Description D (in.) D (mm) Quantity
AVDR4NM Non-metallic Vent Drain 1.25 32 1
AVDR4SS4 Stainless Steel Vent Drain 1.38 35 1
CHS Controls AB
Florettgatan 33
SE-254 67 Helsingborg, Sweden
Tel +46 42 38 61 00, Fax +46 42 38 61 29
chs@chscontrols.se
www.chscontrols.se

1291
Accessories: Condensation and Pressure Compensation
Condensation and Pressure Compensation Devices
PH (763) 422-2211 • FX (763) 422-2600 • homanonline.com
Subject to change without notice © 2011 Pentair Technical Products
CHS Controls AB
Florettgatan 33
SE-254 67 Helsingborg, Sweden
Tel +46 42 38 61 00, Fax +46 42 38 61 29
chs@chscontrols.se
www.chscontrols.se

1292
Accessories: Condensation and Pressure Compensation
Condensation and Pressure Compensation Devices
PH (763) 422-2211 • FX (763) 422-2600 • homanonline.com
Subject to change without notice © 2011 Pentair Technical Products
H2OMIT® Thermoelectric Dehumidier
Industry Standards
UL 508A Listed; File No. E61997
cUL Listed per C22.2 No. 14; File No. E61997
CE
Application
The H2OMIT® Thermoelectric Dehumidier removes moisture from
the air within an enclosure, providing an inexpensive yet highly
eective way to protect electronic and electrical components from
condensation.
Features
• Reduces corrosion that can limit the life of internal electrical and
electronic components
• Condenses moisture from internal enclosure air and standing
liquids
• Built-in drain provision with plastic hose directs collected moisture
to the Vent Drain (sold separately)
• Rotating side air vents direct recirculating air away from critical
controls
• Mounts via DIN rail on internal panel or mounts directly onto the
inside bottom of enclosure above the Vent Drain (sold separately)
• Can be used in mild steel, aluminum, stainless steel and non-
metallic enclosures
Specications
• High-impact ABS shell
• Operates on 24-Volt DC power
• 4.5 A max. (84 W)
• Runs continuously above 32 Fa (power supply not included)
• Removes 8 oz. of moisture in 24 hours
• Compact 6.00-in. x 5.50-in. x 5.75-in. design
• One Thermoelectric Dehumidier includes:
- Four feet of plastic hose
- Two hose retainers
- One double-ended hose retainer
- Six inches of Velcro®
- Seven-inch strip of DIN rail
- Two mounting screws
Must be used with UL-certied drain to remove pooled liquid from
enclosure.
aIf continual operation is not desired, a Mechanical Hygrostat (AMHUM)
can be wired to the thermoelectric dehumidier and then set to turn the
dehumidier on at the desired relative humidity.
VELCRO is a trademark of Velcro Industries B.V.
Bulletin: H2O
Standard Product
Catalog Number Description
H2OMITTER Thermoelectric Dehumidier
CHS Controls AB
Florettgatan 33
SE-254 67 Helsingborg, Sweden
Tel +46 42 38 61 00, Fax +46 42 38 61 29
chs@chscontrols.se
www.chscontrols.se

1293
Accessories: Condensation and Pressure Compensation
Condensation and Pressure Compensation Devices
PH (763) 422-2211 • FX (763) 422-2600 • homanonline.com
Subject to change without notice © 2011 Pentair Technical Products
Dew Point Temperature Percent Relative Humidity
Temp. (° F) 100% 95% 90% 85% 80% 75% 70% 65% 60% 55% 50% 45% 40% 35% 30% 25% 20% 15% 10%
110 110 108 106 104 102 100 98 95 93 90 87 84 80 76 72 65 60 51 41
105 105 103 101 99 97 95 93 91 88 85 83 80 76 72 67 62 55 47 37
100 100 99 97 95 93 91 89 86 84 81 78 75 71 67 63 58 52 44 32
95 95 96 92 90 88 86 87 81 79 76 73 70 67 63 59 54 48 40 32
90 90 88 87 85 83 81 79 76 74 71 68 65 62 59 54 49 43 36 32
85 85 83 81 80 78 76 74 71 69 67 64 61 58 54 50 45 38 32 —
80 80 78 77 75 73 71 69 67 65 62 59 56 53 50 45 40 35 32 —
75 75 73 72 70 68 66 64 62 60 58 55 52 49 45 41 36 32 — —
70 70 68 67 65 63 61 59 58 55 53 50 47 44 40 37 32 — — —
65 65 63 62 60 59 57 55 53 50 48 45 42 40 36 62 — — — —
60 60 58 57 55 53 52 50 48 45 43 41 38 35 32 — — — — —
55 55 53 52 50 49 47 45 43 40 38 36 33 32 — — — — — —
50 50 48 46 45 44 42 40 38 36 34 32 — — — — — — — —
45 45 43 42 40 39 37 35 34 32 — — — — — — — — — —
40 40 39 37 35 34 32 — — — — — — — — — — — — —
35 35 34 32 — — — — — — — — — — — — — — — —
32 32 — — — — — — — — — — — — — — — — — —
Denition: Dew Point is the temperature at which condensation forms. If the temperature of the enclosure is 85 F
and the relative humidity is 80 percent, Dew Point is reached at a temperature of 78 F or below.
This means that moisture vapor will condense on any surface that is below the Dew Point temperature of 78 F.
CHS Controls AB
Florettgatan 33
SE-254 67 Helsingborg, Sweden
Tel +46 42 38 61 00, Fax +46 42 38 61 29
chs@chscontrols.se
www.chscontrols.se

1294
Accessories: Condensation and Pressure Compensation
Condensation and Pressure Compensation Devices
PH (763) 422-2211 • FX (763) 422-2600 • homanonline.com
Subject to change without notice © 2011 Pentair Technical Products
Stainless Steel Pressure Compensation Device
Industry Standards
CE
NEMA Type 4X
IEC/EN 60529, IP66
Application
Pressure dierentials in a tightly sealed enclosure result from
heat generated by electrical and electronic equipment within the
enclosure and uctuations of outside ambient temperature. Stainless
steel pressure compensation devices provide IP66 protection in
corrosive applications requiring slow pressure equalization. For
optimal performance, install two plugs diagonally to each other.
Features
• Air permeability = 42 cubic feet/hour (1,200 liters/hour) at a
pressure dierence of min. 70 mbar
• Easy installation: drill one 1.60-in. (41-mm) diameter hole
• Sealing gasket (Nitrile Buna-N Rubber)
Specications
• Type 316L stainless steel
• Semipermeable membrane inside the plug lters moisture and
dust
• Mounting thread M40 with union nut
Finish
Machined Type 316L stainless steel
Bulletin: D85
Standard Product
Catalog Number AxB in./mm
Depth in
Enclosure
in./mm
Operating/Storage
Temperature °F
Operating/Storage
Temperature °C
APCDSS6 2.28 x 1.22
58 x 31
0.35
9
-40 to 176 -40 to 80
A dimension = diameter
CHS Controls AB
Florettgatan 33
SE-254 67 Helsingborg, Sweden
Tel +46 42 38 61 00, Fax +46 42 38 61 29
chs@chscontrols.se
www.chscontrols.se

1295
Accessories: Condensation and Pressure Compensation
Condensation and Pressure Compensation Devices
PH (763) 422-2211 • FX (763) 422-2600 • homanonline.com
Subject to change without notice © 2011 Pentair Technical Products
Pressure Compensation Device
Industry Standards
UL Type 1, 4, 4X; File No. E234324
CE
IEC/EN 60529, IP66
Application
Pressure dierentials in a tightly sealed enclosure result from
heat generated by electrical and electronic equipment within the
enclosure and uctuations of outside ambient temperature. Pressure
compensation devices provide IP66 protection in applications
requiring slow pressure equalization. For optimal performance, install
two plugs diagonally to each other.
Features
• Air permeability = 42 cubic feet/hour (1,200 liters/hour) at a
pressure dierence of min. 70 mbar
• Easy installation: drill one 1.60-in. (41-mm) diameter hole
• Sealing gasket (Nitrile Buna-N Rubber)
Specications
• Semipermeable membrane inside the plug to lter moisture and
dust
• Mounting thread M40 with union nut
• Plastic PA66
Finish
Light-gray plastic. Polymeric material manufactured by DuPont™.
DuPont is the trademark of E. I. duPont de Nemours and Company.
Bulletin: D85
Standard Product
Catalog Number
Depth in
Enclosure
in./mm
Operating/Storage
Temperature °F
Operating/Storage
Temperature °C
APCDABS 0.6
15
-49 to 158 -45 to 70
A dimension = diameter
CHS Controls AB
Florettgatan 33
SE-254 67 Helsingborg, Sweden
Tel +46 42 38 61 00, Fax +46 42 38 61 29
chs@chscontrols.se
www.chscontrols.se

1296
Accessories: Panels and Panel Accessories
Panels for Enclosures
PH (763) 422-2211 • FX (763) 422-2600 • homanonline.com
Subject to change without notice © 2011 Pentair Technical Products
Panels and Pane l Accessor ies
Panels for Enc losures
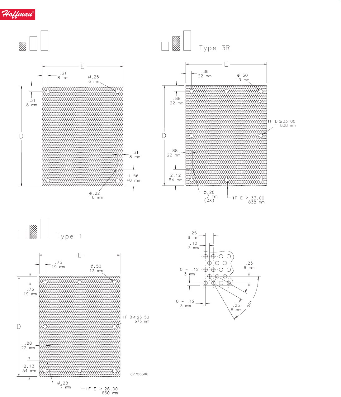
Perforated Panels
Perforated panels are 16 gauge steel and accept self-tapping screws and eliminate the need to measure, mark and drill when mounting
components. Use for mounting lightweight control components.
Bulletin: PNLP
Catalog Number Use in Panel Size D x E (in.) Panel Size D x E (mm)
A6N6PP Small Type 1 Panel Enclosures and Small Type 3R Boxes 4.25 x 4.25 108 x 108
A8N6PP Small Type 1 Panel Enclosures and Small Type 3R Boxes 6.25 x 4.25 159 x 108
A8N8PP Small Type 1 Panel Enclosures and Small Type 3R Boxes 6.25 x 6.25 159 x 159
A10N8PP Small Type 1 Panel Enclosures and Small Type 3R Boxes 8.25 x 6.25 210 x 159
A10N10PP Small Type 1 Panel Enclosures and Small Type 3R Boxes 8.25 x 8.25 210 x 210
A12N10PP Small Type 1 Panel Enclosures and Small Type 3R Boxes 10.25 x 8.25 260 x 210
A12N12PP Small Type 1 Panel Enclosures and Small Type 3R Boxes 10.25 x 10.25 260 x 260
A14N12PP Small Type 1 Panel Enclosures and Small Type 3R Boxes 12.25 x 10.25 311 x 260
A16N12PP Small Type 1 Panel Enclosures and Small Type 3R Boxes 14.25 x 10.25 362 x 260
A20N12PP Small Type 1 Panel Enclosures and Small Type 3R Boxes 18.25 x 10.25 464 x 260
A16N12MPP Medium Type 1 Panel Enclosures 10.50 x 13.00 267 x 330
A16N16MPP Medium Type 1 Panel Enclosures 14.50 x 13.00 368 x 330
A16N20MPP Medium Type 1 Panel Enclosures 18.50 x 13.00 470 x 330
A18N18MPP Medium Type 1 Panel Enclosures 16.50 x 15.00 419 x 381
A20N12MPP Medium Type 1 Panel Enclosures 10.50 x 17.00 267 x 432
A20N16MPP Medium Type 1 Panel Enclosures 14.50 x 17.00 368 x 432
A20N20MPP Medium Type 1 Panel Enclosures 18.50 x 17.00 470 x 432
A24N16MPP Medium Type 1 Panel Enclosures 14.50 x 21.00 368 x 533
A24N20MPP Medium Type 1 Panel Enclosures 18.50 x 21.00 470 x 533
A24N24MPP Medium Type 1 Panel Enclosures 22.50 x 21.00 572 x 533
A30N20MPP Medium Type 1 Panel Enclosures 18.50 x 26.00 470 x 660
A30N24MPP Medium Type 1 Panel Enclosures 22.50 x 26.00 572 x 660
A30N30MPP Medium Type 1 Panel Enclosures 28.50 x 26.00 724 x 660
A36N24MPP Medium Type 1 Panel Enclosures 22.50 x 32.00 572 x 813
A36N30MPP Medium Type 1 Panel Enclosures 26.50 x 32.00 724 x 813
A16P12PP Medium Type 3R Hinged-Cover Panel Enclosures 13.00 x 9.00 330 x 229
A16P16PP Medium Type 3R Hinged-Cover Panel Enclosures 13.00 x 13.00 330 x 330
A20P16PP Medium Type 3R Hinged-Cover Panel Enclosures 17.00 x 13.00 432 x 330
A18P18PP Medium Type 3R Hinged-Cover Panel Enclosures 15.00 x 15.00 381 x 381
A20P20PP Medium Type 3R Hinged-Cover Panel Enclosures 17.00 x 17.00 432 x 732
A24P20PP Medium Type 3R Hinged-Cover Panel Enclosures 21.00 x 17.00 533 x 432
A24P24PP Medium Type 3R Hinged-Cover Panel Enclosures 21.00 x 21.00 533 x 533
A30P24PP Medium Type 3R Hinged-Cover Panel Enclosures 27.00 x 21.00 686 x 533
A36P24PP Medium Type 3R Hinged-Cover Panel Enclosures 33.00 x 21.00 838 x 533
A30P30PP Medium Type 3R Hinged-Cover Panel Enclosures 27.00 x 27.00 686 x 686
A36P30PP Medium Type 3R Hinged-Cover Panel Enclosures 33.00 x 27.00 838 x 686
A36P36PP Medium Type 3R Hinged-Cover Panel Enclosures 33.00 x 33.00 838 x 838
CHS Controls AB
Florettgatan 33
SE-254 67 Helsingborg, Sweden
Tel +46 42 38 61 00, Fax +46 42 38 61 29
chs@chscontrols.se
www.chscontrols.se

1297
Accessories: Panels and Panel Accessories
Panels for Enclosures
PH (763) 422-2211 • FX (763) 422-2600 • homanonline.com
Subject to change without notice © 2011 Pentair Technical Products
CHS Controls AB
Florettgatan 33
SE-254 67 Helsingborg, Sweden
Tel +46 42 38 61 00, Fax +46 42 38 61 29
chs@chscontrols.se
www.chscontrols.se

1298
Accessories: Panels and Panel Accessories
Panels for Enclosures
PH (763) 422-2211 • FX (763) 422-2600 • homanonline.com
Subject to change without notice © 2011 Pentair Technical Products
Panels for Junction Boxes
Steel panels are 14 gauge, nished with white polyester powder
paint or with a conductive, corrosion-resistant coating. Stainless
steel panels are 14 gauge Type 304 and have a commercial #2B nish
which is protected on one side with a plastic lm. Aluminum panels
are 5052-H32 aluminum alloy 0.080-in. (2-mm) thick and protected
on one side with a plastic lm. Panel mounting hardware is furnished
with all enclosures which accept these panels.
Bulletin: PNLJ, PNLWM
Catalog Number Material Panel Size D x E (in.) Panel Size D x E (mm) V (in.) V (mm)
A6P4 Painted steel 4.88 x 2.88 124 x 73 0.31 8
A6P4G Conductive steel 4.88 x 2.88 124 x 73 0.31 8
A6P4SS Stainless Steel 4.88 x 2.88 124 x 73 0.31 8
A6P4AL Aluminum 4.88 x 2.88 124 x 73 0.31 8
A6P6 Painted steel 4.88 x 4.88 124 x 124 0.31 8
A6P6G Conductive steel 4.88 x 4.88 124 x 124 0.31 8
A6P6SS Stainless Steel 4.88 x 4.88 124 x 124 0.31 8
A6P6AL Aluminum 4.88 x 4.88 124 x 124 0.31 8
A8P6 Painted steel 6.75 x 4.88 171 x 124 0.25 6
A8P6G Conductive steel 6.75 x 4.88 171 x 124 0.25 6
A8P6SS Stainless Steel 6.75 x 4.88 171 x 124 0.25 6
A8P6AL Aluminum 6.75 x 4.88 171 x 124 0.25 6
A8P8 Painted steel 6.75 x 6.88 171 x 175 0.25 6
A8P8AL Aluminum 6.75 x 6.88 171 x 175 0.25 6
A10P8 Painted steel 8.75 x 6.88 222 x 175 0.25 6
A10P8G Conductive steel 8.75 x 6.88 222 x 175 0.25 6
A10P8SS Stainless Steel 8.75 x 6.88 222 x 175 0.25 6
A10P8AL Aluminum 8.75 x 6.88 222 x 175 0.25 6
A10P10 Painted steel 8.75 x 8.88 222 x 226 0.25 6
A10P10G Conductive steel 8.75 x 8.88 222 x 226 0.25 6
A10P10AL Aluminum 8.75 x 8.88 222 x 226 0.25 6
A12P6 Painted steel 10.75 x 4.88 273 x 124 0.25 6
A12P6G Conductive steel 10.75 x 4.88 273 x 124 0.25 6
A12P10 Painted steel 10.75 x 8.88 273 x 226 0.25 6
A12P10G Conductive steel 10.75 x 8.88 273 x 226 0.25 6
A12P10SS Stainless Steel 10.75 x 8.88 273 x 226 0.25 6
A12P10AL Aluminum 10.75 x 8.88 273 x 226 0.25 6
A12P12 Painted steel 10.75 x 10.88 273 x 276 0.25 6
A12P12G Conductive steel 10.75 x 10.88 273 x 276 0.25 6
A12P12SS Stainless Steel 10.75 x 10.88 273 x 276 0.25 6
A14P8 Painted steel 12.75 x 6.88 324 x 175 0.25 6
A14P8G Conductive steel 12.75 x 6.88 324 x 175 0.25 6
A14P12 Painted steel 12.75 x 10.88 324 x 276 0.25 6
A14P12G Conductive steel 12.75 x 10.88 324 x 276 0.25 6
A14P12SS Stainless Steel 12.75 x 10.88 324 x 276 0.25 6
A14P12AL Aluminum 12.75 x 10.88 324 x 276 0.25 6
A16P10 Painted steel 14.75 x 8.88 375 x 226 0.25 6
A16P10G Conductive steel 14.75 x 8.88 375 x 226 0.25 6
A16P14 Painted steel 14.75 x 12.88 375 x 327 0.25 6
A16P14G Conductive steel 14.75 x 12.88 375 x 327 0.25 6
A16P14SS Stainless Steel 14.75 x 12.88 375 x 327 0.25 6
A16P14AL Aluminum 14.75 x 12.88 375 x 327 0.25 6
A18P16 Painted steel 16.75 x 14.88 425 x 378 0.25 6
A18P16G Conductive steel 16.75 x 14.88 425 x 378 0.25 6
A18P16SS Stainless Steel 16.75 x 14.88 425 x 378 0.25 6
A18P16AL Aluminum 16.75 x 14.88 425 x 378 0.25 6
CHS Controls AB
Florettgatan 33
SE-254 67 Helsingborg, Sweden
Tel +46 42 38 61 00, Fax +46 42 38 61 29
chs@chscontrols.se
www.chscontrols.se

1299
Accessories: Panels and Panel Accessories
Panels for Enclosures
PH (763) 422-2211 • FX (763) 422-2600 • homanonline.com
Subject to change without notice © 2011 Pentair Technical Products
Composite Panels for Junction Boxes and UL/NEMA Wall-Mount Enclosures
Manufactured from light-brown, reinforced phenolic laminate sheet
stock. This material has exceptional strength and chemical resistance,
which makes it ideally suited for the most corrosive environments.
Composite panels are intended for use in corrosion-resistant
enclosures. Panel sizes are available for junction boxes and UL/NEMA
size enclosures. Composite panels may be drilled and tapped but
work equally as well with self-threading or thread-cutting screws.
Refer to the table for recommended mounting specications.
Bulletin: PNLC
Standard Product
Catalog Number
Panel Size
D x E
in./mm
R
in./mm
S
in./mm
Hole Dia.
in./mm
Panel
Thickness
in./mm
A6P4C 4.88 x 2.88
124 x 73
4.25
108
2.25
57
0.25
6
0.12
3
A6P6C 4.88 x 4.88
124 x 124
4.25
108
4.25
108
0.25
6
0.12
3
A8P6C 6.75 x 4.88
171 x 124
6.25
159
4.25
108
0.25
6
0.12
3
A10P8C 8.75 x 6.88
222 x 175
8.25
210
6.25
159
0.25
6
0.12
3
A12P10C 10.75 x 8.88
273 x 226
10.25
260
8.25
210
0.25
6
0.19
5
A14P12C 12.75 x 10.88
324 x 276
12.25
311
10.25
260
0.25
6
0.19
5
A16P14C 14.75 x 12.88
375 x 327
14.25
362
12.25
311
0.25
6
0.19
5
A18P16C 16.75 x 14.88
425 x 379
16.25
413
14.25
362
0.25
6
0.19
5
A20P16C 17.00 x 13.00
432 x 330
15.25
387
11.25
286
0.50
13
0.19
5
A20P20C 17.00 x 17.00
432 x 432
15.25
387
15.25
387
0.50
13
0.19
5
A24P20C 21.00 x 17.00
533 x 432
19.25
489
15.25
387
0.50
13
0.19
5
A24P24C 21.00 x 21.00
533 x 533
19.25
489
19.25
489
0.50
13
0.19
5
A30P24C 27.00 x 21.00
686 x 533
25.25
641
19.25
489
0.50
13
0.19
5
Composite Panel Mounting Recommendations
Screw Type Screw Size
Hole Size
in./mm
Max. Insertion Torque (lb.)
in 0.12 in. Material
Max. Insertion Torque (lb.)
in 0.19 in. Material
Max. Load (lb. per screw)
in 0.12 in. Material
Max. Load (lb. per screw)
in 0.19 in. Material
Machine (tapped hole) 8-32 .136
3
15 25 40 45
Machine (tapped hole) 10-32 .161
4
15 25 35 40
Machine (tapped hole) 1/4-20 .204
5
20 25 30 35
Thread Cutting Type T 8-32 .144
4
15 25 40 45
Thread Cutting Type T 10-32 .166
4
15 25 35 40
Thread Cutting Type T 1/4-20 .288
7
20 25 30 35
Sheet Metal A-B 8-32 .147
4
Not recommended 10 40 45
Sheet Metal A-B 10-32 .166
4
Not recommended 10 35 40
Sheet Metal A-B 1/4-20 .221
6
Not recommended 15 30 35
CHS Controls AB
Florettgatan 33
SE-254 67 Helsingborg, Sweden
Tel +46 42 38 61 00, Fax +46 42 38 61 29
chs@chscontrols.se
www.chscontrols.se

1300
Accessories: Panels and Panel Accessories
Panels for Enclosures
PH (763) 422-2211 • FX (763) 422-2600 • homanonline.com
Subject to change without notice © 2011 Pentair Technical Products
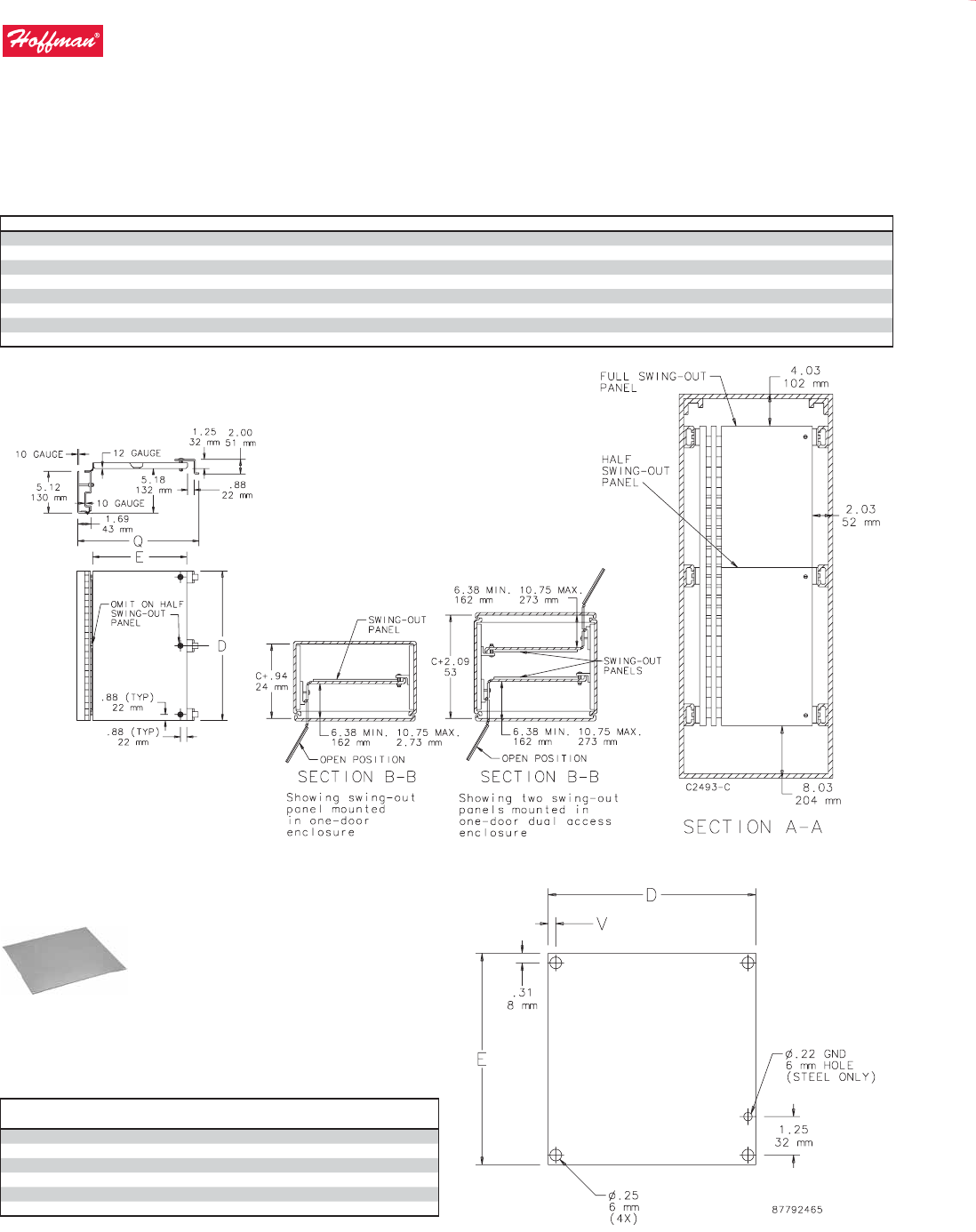
Junction Box and Wall-Mount Enclosure
Swing-Out Panel Kit
Kits allow mounting standard Homan junction box and NEMA
style panels (purchase separately) near the front of the enclosure for
easy access to or reading of gauges, switches, pilot lights and other
components. Kits consist of heavy-gauge brackets and hinges which
are easily installed by drilling small holes in the sides of the enclosure
and bolting the brackets in place. External screws are stainless steel;
internal components are plated steel. All mounting hardware and
instructions are provided. Sealing washers ensure the enclosure will
meet original JIC or NEMA standards after installation.
Swing-Out Panel Kits do not t single-door disconnect enclosures.
Bulletin: A80
Catalog Number Description
Maximum
Load (lb.)
Maximum
Load (kg) Use In
AJCDFK Junction Box Kit 25 11.3 - Junction boxes where A x B is 8.00 x 6.00 in. (203 x 152 mm) or larger
- HCLO Type 3R enclosures where A x B is 16.00 x 12.00 in. (406 x 305 mm) or smaller
ANADFK Wall-Mount Enclosure Kit 100 45.4 - One-door Type 4, 12 and 13 enclosures where A x B is 12.00 x 12.00 in. (305 x 305 mm) or larger
- HCLO Type 3R enclosures where A x B is 16.00 x 16.00 in. (406 x 406 mm) or larger
- HCR Type 3R enclosures where A x B is 16.00 x 12.00 (406 x 305 mm) or larger
- Type 1 enclosures where A x B is 42.00 x 30.00 in. (1067 x 762 mm) or larger
Both kits maintain UL Type 4 rating when properly installed in a Homan enclosure.
Maximum load includes the weight of the panel plus the weight of the components, with the weight of the components spread evenly over the panel.
CHS Controls AB
Florettgatan 33
SE-254 67 Helsingborg, Sweden
Tel +46 42 38 61 00, Fax +46 42 38 61 29
chs@chscontrols.se
www.chscontrols.se

1301
Accessories: Panels and Panel Accessories
Panels for Enclosures
PH (763) 422-2211 • FX (763) 422-2600 • homanonline.com
Subject to change without notice © 2011 Pentair Technical Products
Panels for Type 1 Enclosures and Small Type 3R
Enclosures
Steel panels are 14 gauge, nished with white polyester powder
paint. Panel mounting hardware is furnished with enclosure.
Bulletin: PNLT1
Catalog Number Panel Size D x E (in.) Panel Size D x E (mm)
A6N4P 4.25 x 2.25 108 x 57
A6N6P 4.25 x 4.25 108 x 108
A8N6P 6.25 x 4.25 159 x 108
A8N8P 6.25 x 6.25 159 x 159
A10N8P 8.25 x 6.25 210 x 159
A10N10P 8.25 x 8.25 210 x 210
A12N10P 10.25 x 8.25 260 x 210
A12N12P 10.25 x 10.25 260 x 260
A14N12P 12.25 x 10.25 311 x 260
A16N12P 14.25 x 10.25 362 x 260
A20N12P 18.25 x 10.25 464 x 260
Panels for Medium Type 1 Enclosures
Steel panels are 14 or 12 gauge with a white polyester powder paint
nish. Panel mounting hardware is furnished with enclosure.
Bulletin: PNLT1
Catalog Number Panel Thickness (ga.) Panel Size D x E (in.) Panel Size D x E (mm)
A16N12MP 14 13.00 x 10.50 330 x 267
A20N12MP 14 17.00 x 10.50 432 x 267
A16N16MP 14 13.00 x 14.50 330 x 368
A20N16MP 14 17.00 x 14.50 432 x 368
A24N16MP 14 21.00 x 14.50 533 x 368
A18N18MP 14 15.00 x 16.50 381 x 419
A16N20MP 14 13.00 x 18.50 330 x 470
A20N20MP 14 17.00 x 18.50 432 x 470
A24N20MP 14 21.00 x 18.50 533 x 470
A30N20MP 14 26.00 x 18.50 660 x 470
A24N24MP 12 21.00 x 22.50 533 x 571
A30N24MP 12 26.00 x 22.50 660 x 571
A36N24MP 12 32.00 x 22.50 813 x 571
A30N30MP 12 26.00 x 28.50 660 x 724
A36N30MP 12 32.00 x 28.50 813 x 724
CHS Controls AB
Florettgatan 33
SE-254 67 Helsingborg, Sweden
Tel +46 42 38 61 00, Fax +46 42 38 61 29
chs@chscontrols.se
www.chscontrols.se

1302
Accessories: Panels and Panel Accessories
Panels for Enclosures
PH (763) 422-2211 • FX (763) 422-2600 • homanonline.com
Subject to change without notice © 2011 Pentair Technical Products
Panels for Type 3R, 4, 4X, 12 and 13 Enclosures
Steel panels are 12 gauge, nished with white polyester powder paint or a conductive, corrosion-resistant coating. Larger panels have
anges on two or four sides. Some larger steel panels are 10 gauge and include extra holes for panel lifting. Aluminum panels are 5052-H32
aluminum alloy. Larger panels have anges on four sides. Aluminum panels are protected on one side with a plastic lm. Stainless steel
panels are Type 316 stainless steel. Panel mounting hardware is furnished with all enclosures which accept these panels.
Bulletin: PNLFS, PNLJ, PNLWM
Catalog Number Material
Panel Size
D x E (in.)
Panel Size
D x E (mm)
Panel Gauge
or Thickness
Edge
Flanges T (in.) T (mm)
Number
of Holes
A12P24 Painted steel 9.00 x 21.00 229 x 533 12 ga. None — — 4
A12P24G Conductive steel 9.00 x 21.00 229 x 533 12 ga. None — — 4
A16P12 Painted steel 13.00 x 9.00 330 x 229 12 ga. None — — 4
A16P12G Conductive steel 13.00 x 9.00 330 x 229 12 ga. None — — 4
A16P12SS6 Stainless Steel 13.00 x 9.00 330 x 229 12 ga. None — — 4
A16P12AL Aluminum 13.00 x 9.00 330 x 229 0.10 in./3 mm None — — 4
A16P16 Painted steel 13.00 x 13.00 330 x 330 12 ga. None — — 4
A16P16G Conductive steel 13.00 x 13.00 330 x 330 12 ga. None — — 4
A16P16SS6 Stainless Steel 13.00 x 13.00 330 x 330 12 ga. None — — 4
A16P16AL Aluminum 13.00 x 13.00 330 x 330 0.10 in./3 mm None — — 4
A18P18 Painted steel 15.00 x 15.00 381 x 381 12 ga. None — — 4
A18P18G Conductive steel 15.00 x 15.00 381 x 381 12 ga. None — — 4
A20P12 Painted steel 17.00 x 9.00 432 x 229 12 ga. None — — 4
A20P12G Conductive steel 17.00 x 9.00 432 x 229 12 ga. None — — 4
A20P16 Painted steel 17.00 x 13.00 432 x 330 12 ga. None — — 4
A20P16G Conductive steel 17.00 x 13.00 432 x 330 12 ga. None — — 4
A20P16SS6 Stainless Steel 17.00 x 13.00 432 x 330 12 ga. None — — 4
A20P16AL Aluminum 17.00 x 13.00 432 x 330 0.10 in./3 mm None — — 4
A20P20 Painted steel 17.00 x 17.00 432 x 432 12 ga. None — — 4
A20P20G Conductive steel 17.00 x 17.00 432 x 432 12 ga. None — — 4
A20P20SS6 Stainless steel 17.00 x 17.00 432 x 432 12 ga. None — — 4
A20P20AL Aluminum 17.00 x 17.00 432 x 432 0.10 in./3 mm None — — 4
A24P16 Painted steel 21.00 x 13.00 533 x 330 12 ga. None — — 4
A24P16G Conductive steel 21.00 x 13.00 533 x 330 12 ga. None — — 4
A24P16SS6 Stainless Steel 21.00 x 13.00 533 x 330 12 ga. None — — 4
A24P20 Painted steel 21.00 x 17.00 533 x 432 12 ga. 2 0.75 19 4
A24P20G Conductive steel 21.00 x 17.00 533 x 432 12 ga. 2 0.75 19 4
A24P20SS6 Stainless Steel 21.00 x 17.00 533 x 432 12 ga. 2 0.75 19 4
A24P20AL Aluminum 21.00 x 17.00 533 x 432 0.10 in./3 mm 4 0.75 19 4
A24P24 Painted steel 21.00 x 21.00 533 x 533 12 ga. 2 0.75 19 4
A24P24G Conductive steel 21.00 x 21.00 533 x 533 12 ga. 2 0.75 19 4
A24P24SS6 Stainless Steel 21.00 x 21.00 533 x 533 12 ga. 2 0.75 19 4
A24P24AL Aluminum 21.00 x 21.00 533 x 533 0.10 in./3 mm 2 0.75 19 4
A30P16 Painted steel 27.00 x 13.00 686 x 330 12 ga. 2 0.75 19 4
A30P16G Conductive steel 33.00 x 27.00 838 x 686 12 ga. 2 0.75 19 4
A30P20 Painted steel 27.00 x 17.00 686 x 432 12 ga. 2 0.75 19 4
A30P20G Conductive steel 27.00 x 17.00 686 x 432 12 ga. 2 0.75 19 4
A30P20SS6 Stainless Steel 27.00 x 17.00 686 x 432 12 ga. 2 0.75 19 4
A30P24 Painted steel 27.00 x 21.00 686 x 533 12 ga. 2 0.75 19 4
A30P24G Conductive steel 27.00 x 21.00 686 x 533 12 ga. 2 0.75 19 4
A30P24SS6 Stainless Steel 27.00 x 21.00 686 x 533 12 ga. 2 0.75 19 4
A30P24AL Aluminum 27.00 x 21.00 686 x 533 0.10 in./3 mm 2 0.75 19 4
A30P30 Painted steel 27.00 x 27.00 686 x 686 12 ga. 4 0.75 19 4
A30P30G Conductive steel 27.00 x 27.00 686 x 686 12 ga. 4 0.75 19 4
A30P30SS6 Stainless Steel 27.00 x 27.00 686 x 686 12 ga. 4 0.75 19 4
A36P16 Painted steel 33.00 X 13.00 838 X 330 12 ga. 2 0.75 19 4
A36P16G Conductive steel 33.00 x 13.00 838 x 330 12 ga. 2 0.75 19 4
A36P24 Painted steel 33.00 x 21.00 838 x 533 12 ga. 2 0.75 19 6
A36P24G Conductive steel 33.00 x 21.00 838 x 533 12 ga. 2 0.75 19 6
A36P24SS6 Stainless Steel 33.00 x 21.00 838 x 533 12 ga. 2 0.75 19 6
A36P24AL Aluminum 33.00 x 21.00 838 x 533 0.10 in./3 mm 2 0.75 19 6
A36P30 Painted steel 33.00 x 27.00 838 x 686 12 ga. 4 0.75 19 6
A36P30G Conductive steel 33.00 x 27.00 838 x 686 12 ga. 4 0.75 19 6
A36P30SS6 Stainless Steel 33.00 x 27.00 838 x 686 12 ga. 4 0.75 19 6
A36P30AL Aluminum 33.00 x 27.00 838 x 686 0.10 in./3 mm 4 0.75 19 6
A36P36 Painted steel 33.00 x 33.00 838 x 838 12 ga. 4 0.75 19 8
A36P36G Conductive steel 33.00 x 33.00 838 x 838 12 ga. 4 0.75 19 8
A36P36SS6 Stainless Steel 33.00 x 33.00 838 x 838 12 ga. 4 0.75 19 8
A40P24 Painted steel 37.00 x 21.00 940 x 533 12 ga. 4 0.75 19 6
A40P24G Conductive steel 37.00 x 21.00 940 x 533 12 ga. 4 0.75 19 6
A40P30 Painted steel 37.00 x 29.00 940 x 737 12 ga. 4 0.75 19 4 (no D dim. center hole)
A40P30G Conductive steel 37.00 x 29.00 940 x 737 12 ga. 4 0.75 19 4 (no D dim. center hole)
A42P24 Painted steel 39.00 x 21.00 991 x 533 12 ga. 2 0.75 19 6
A42P24G Conductive steel 39.00 x 21.00 991 x 533 12 ga. 2 0.75 19 6
A42P30 Painted steel 39.00 x 27.00 991 x 686 12 ga. 4 0.75 19 6
A42P30G Conductive steel 39.00 x 27.00 991 x 686 12 ga. 4 0.75 19 6
A42P30SS6 Stainless Steel 39.00 x 27.00 991 x 686 12 ga. 4 0.75 19 6
A42P36 Painted steel 39.00 x 33.00 991 x 838 12 ga. 4 0.75 19 8
A42P36G Conductive steel 39.00 x 33.00 991 x 838 12 ga. 4 0.75 19 8
A42P36SS6 Stainless Steel 39.00 x 33.00 991 x 838 12 ga. 4 0.75 19 8
A42P42 Painted steel 39.00 x 39.00 991 x 991 12 ga. 4 0.75 19 8

1303
Accessories: Panels and Panel Accessories
Panels for Enclosures
PH (763) 422-2211 • FX (763) 422-2600 • homanonline.com
Subject to change without notice © 2011 Pentair Technical Products
Catalog Number Material
Panel Size
D x E (in.)
Panel Size
D x E (mm)
Panel Gauge
or Thickness
Edge
Flanges T (in.) T (mm)
Number
of Holes
A42P42G Conductive steel 39.00 x 39.00 991 x 991 12 ga. 4 0.75 19 8
A48P24 Painted steel 45.00 x 21.00 1143 x 533 12 ga. 2 0.75 19 6
A48P24G Conductive steel 45.00 x 21.00 1143 x 533 12 ga. 2 0.75 19 6
A48P30 Painted steel 45.00 x 27.00 1143 x 686 12 ga. 4 0.75 19 6
A48P30G Conductive steel 45.00 x 27.00 1143 x 686 12 ga. 4 0.75 19 6
A48P36 Painted steel 45.00 x 33.00 1143 x 838 12 ga. 4 0.75 19 8
A48P36G Conductive steel 45.00 x 33.00 1143 x 838 12 ga. 4 0.75 19 8
A48P36SS6 Stainless Steel 45.00 x 33.00 1143 x 838 12 ga. 4 0.75 19 8
A48P36AL Aluminum 45.00 x 33.00 1143 x 838 0.10 in./3 mm 4 0.75 19 8
A48P42 Painted steel 45.00 x 39.00 1143 x 991 12 ga. 4 0.75 19 8
A48P42G Conductive steel 45.00 x 39.00 1143 x 991 12 ga. 4 0.75 19 8
A48P48 Painted steel 44.00 x 44.00 1118 x 1118 10 ga. 4 0.88 22 8
A48P48G Conductive steel 44.00 x 44.00 1118 x 1118 10 ga. 4 0.88 22 8
A54P42 Painted steel 50.00 x 38.00 1270 x 965 12 ga. 4 0.75 19 8
A54P42G Conductive steel 50.00 x 38.00 1270 x 965 10 ga. 4 0.75 19 8
A60P24 Painted steel 57.00 x 21.00 1448 x 533 12 ga. 4 0.75 19 6
A60P24G Conductive steel 57.00 x 21.00 1448 x 533 12 ga. 4 0.75 19 6
A60P30 Painted steel 57.00 x 27.00 1448 x 686 12 ga. 4 0.75 19 6
A60P30G Conductive steel 57.00 x 27.00 1448 x 686 12 ga. 4 0.75 19 6
A60P36 Painted steel 57.00 x 33.00 1448 x 838 12 ga. 4 0.75 19 8
A60P36G Conductive steel 57.00 x 33.00 1448 x 838 12 ga. 4 0.75 19 8
A60P36SS6 Stainless Steel 57.00 x 33.00 1448 x 838 12 ga. 4 0.75 19 8
A60P36AL Aluminum 57.00 x 33.00 1448 x 838 0.10 in./3 mm 4 0.75 19 8
A60BFP42 Painted steel 56.00 x 38.00 1422 x 965 10 ga. 4 0.88 22 10
A60BFP42G Conductive steel 56.00 x 38.00 1422 x 965 10 ga. 4 0.88 22 10
A60P48 Painted steel 56.00 x 44.00 1422 x 1118 10 ga. 4 0.88 22 12
A60P48G Conductive steel 56.00 x 44.00 1422 x 1118 10 ga. 4 0.88 22 12
A60P60 Painted steel 56.00 x 56.00 1422 x 1422 10 ga. 4 0.88 22 10
A60P60G Conductive steel 56.00 x 56.00 1422 x 1422 10 ga. 4 0.88 22 10
A72P36 Painted steel 69.00 x 33.00 1753 x 838 12 ga. 4 0.75 19 8
A72P36G Conductive steel 69.00 x 33.00 1753 x 838 12 ga. 4 0.75 19 8
A72P60 Painted steel 68.00 x 56.00 1727 x 1422 10 ga. 4 0.88 22 12
A72P60G Conductive steel 68.00 x 56.00 1727 x 1422 10 ga. 4 0.88 22 12
A72P72 Painted steel 68.00 x 68.00 1727 x 1727 10 ga. 4 0.88 22 10
A72P72G Conductive steel 68.00 x 68.00 1727 x 1727 10 ga. 4 0.88 22 10
CHS Controls AB
Florettgatan 33
SE-254 67 Helsingborg, Sweden
Tel +46 42 38 61 00, Fax +46 42 38 61 29
chs@chscontrols.se
www.chscontrols.se

1304
Accessories: Panels and Panel Accessories
Panels for Enclosures
PH (763) 422-2211 • FX (763) 422-2600 • homanonline.com
Subject to change without notice © 2011 Pentair Technical Products
Panels for Large Bulletin A27, A28, A28S4 and A34 Multi-Door Enclosures
Extra panels for large enclosures (Bulletins A27, A28, A28S4 and A34) can be ordered for panel assembly prior to receiving the enclosures
(enclosures include panels). Panels are 12 gauge steel with .88-in. (22-mm) anges on four sides. Finish is white polyester powder paint or
a conductive, corrosion-resistant coating. Two extra holes are provided for lifting and installing panels. Mounting hardware included with
enclosure.
Bulletin: PNLFS
Catalog Number Finish
Panel Size
D x E (in.)
Panel Size
D x E (mm)
Number
of Holes
Fits
Enclosure
Height
A72PM28 Painted steel 60.00 x 21.75 1524 x 552 8 72 in.
A72PM28G Conductive 60.00 x 21.75 1524 x 552 8 72 in.
A72PM34 Painted steel 60.00 x 27.75 1524 x 705 8 72 in.
A72PM34G Conductive 60.00 x 27.75 1524 x 705 8 72 in.
A72PM40 Painted steel 60.00 x 33.75 1524 x 857 8 72 in.
A72PM40G Conductive 60.00 x 33.75 1829 x 857 8 72 in.
A72PM54 Painted steel 60.00 x 48.00 1524 x 1219 10 72 in.
A72PM54G Conductive 60.00 x 48.00 1524 x 1219 10 72 in.
A72PM66 Painted steel 60.00 x 60.00 1524 x 1524 10 72 in.
A72PM66G Conductive 60.00 x 60.00 1524 x 1524 10 72 in.
A72PM78 Painted steel 60.00 x 72.00 1524 x 1829 12 72 in.
A72PM78G Conductive 60.00 x 72.00 1524 x 1829 12 72 in.
A84PM40 Painted steel 72.00 x 33.75 1829 x 857 8 84 in.
A84PM40G Conductive 72.00 x 33.75 1829 x 857 8 84 in.
A84PM78 Painted steel 72.00 x 72.00 1829 x 1829 12 84 in.
A84PM78G Conductive 72.00 x 72.00 1829 x 1829 12 84 in.
A86PM37 Painted steel 78.00 x 34.00 1981 x 864 8 86 in.
A86PM37G Conductive 78.00 x 34.00 1981 x 864 8 86 in.
A86PM75 Painted steel 78.00 x 70.00 1981 x 1778 12 86 in.
A86PM75G Conductive 78.00 x 70.00 1981 x 1778 12 86 in.
A90PM40 Painted steel 78.00 x 33.75 1981 x 857 8 90 in.
A90PM40G Conductive 78.00 x 33.75 1981 x 857 8 90 in.
A90PM78 Painted steel 78.00 x 72.00 1981 x 1829 12 90 in.
A90PM78G Conductive 78.00 x 72.00 1981 x 1829 12 90 in.
CHS Controls AB
Florettgatan 33
SE-254 67 Helsingborg, Sweden
Tel +46 42 38 61 00, Fax +46 42 38 61 29
chs@chscontrols.se
www.chscontrols.se

1305
Accessories: Panels and Panel Accessories
Panels for Enclosures
PH (763) 422-2211 • FX (763) 422-2600 • homanonline.com
Subject to change without notice © 2011 Pentair Technical Products
Panels for Free-Stand Type 1 Large One-Door Enclosures
Panels for free-stand Type 1 large one-door standard and disconnect enclosures are 12 gauge steel. Panels have either polyester powder
paint nish or a conductive, corrosion-resistant coating.
Bulletin: A26P, A38P
Catalog Number Finish
Panel Size
D x E (in.)
Panel Size
D x E (mm)
A37P21N Painted steel 37.16 x 21.50 944 x 546
A37P21NG Conductive 37.16 x 21.50 944 x 546
A49P21N Painted steel 49.16 x 21.50 1249 x 546
A49P21NG Conductive 49.16 x 21.50 1249 x 546
A61P21N Painted steel 61.16 x 21.50 1553 x 546
A73P21N Painted steel 73.16 x 21.50 1858 x 546
A73P21NG Conductive 73.16 x 21.50 1858 x 546
A49P32N Painted steel 49.16 x 32.00 1249 x 813
A49P32NG Conductive 49.16 x 32.00 1249 x 813
A61P32N Painted steel 61.16 x 32.00 1553 x 813
A61P32NG Conductive 61.16 x 32.00 1553 x 813
A73P32N Painted steel 73.16 x 32.00 1858 x 813
A73P32NG Conductive 73.16 x 32.00 1858 x 813
Panels for Free-Stand Type 1 Large Two-Door Enclosures
Panels for free-stand Type 1 large two-door standard and disconnect enclosures are 10 gauge steel. Panels have either polyester powder
paint nish or a conductive, corrosion-resistant coating.
Bulletin: A38P
Catalog Number Finish
Panel Size
D x E (in.)
Panel Size
D x E (mm)
A37P48N Painted steel 37.16 x 48.00 944 x 1219
A37P48NG Conductive 37.16 x 48.00 944 x 1219
A49P48N Painted steel 49.16 x 48.00 1249 x 1219
A49P48NG Conductive 49.16 x 48.00 1249 x 1219
A49P68N Painted steel 49.16 x 68.00 1249 x 1727
A49P68NG Conductive 49.16 x 68.00 1249 x 1727
A61P68N Painted steel 61.16 x 68.00 1553 x 1727
A61P68NG Conductive 61.16 x 68.00 1553 x 1727
A73P68N Painted steel 73.16 x 68.00 1858 x 1727
A73P68NG Conductive 73.16 x 68.00 1858 x 1727
CHS Controls AB
Florettgatan 33
SE-254 67 Helsingborg, Sweden
Tel +46 42 38 61 00, Fax +46 42 38 61 29
chs@chscontrols.se
www.chscontrols.se

1306
Accessories: Panels and Panel Accessories
Panels for Enclosures
PH (763) 422-2211 • FX (763) 422-2600 • homanonline.com
Subject to change without notice © 2011 Pentair Technical Products
Panels for Free-Stand Type 4, 4X and 12 Single- and Dual-Access One-Door Enclosures with
Mounting Channel
Panels for one-door, single-access and one-door, dual-access Free-Stand Type 12 Enclosures, Free-Stand Type 4 Enclosures and One-Door
Type 4X Free-Stand Fiberglass Enclosures. Panels are 12 gauge steel and can be positioned anywhere along horizontal mounting channels
(see dimension drawing Sections B-B for limitations). Half-length panels can be located in the upper or lower portion of the enclosure. Panels
are nished with white polyester powder paint or a conductive, corrosion-resistant coating and furnished with plated mounting hardware.
Bulletin: PNL30, PNLFS
Catalog Number Description Finish Panel Size (in.) Panel Size (mm)
Fits Enclosure
A x B (in.)
Fits Enclosure
A x B (mm)
A60P24F1 Full Panel Painted steel 48.00 x 20.00 1218 x 508 60.00 x 24.00 1524 x 610
A60P24F1G Full Panel Conductive 48.00 x 20.00 1218 x 508 60.00 x 24.00 1524 x 610
A60P24F2 Half Panel Painted steel 24.88 x 20.00 632 x 508 60.00 x 24.00 1524 x 610
A60P24F2G Half Panel Conductive 24.88 x 20.00 632 x 508 60.00 x 24.00 1524 x 610
A72P24F1 Full Panel Painted steel 60.00 x 20.00 1524 x 508 72.00 x 24.00 1829 x 610
A72P24F1G Full Panel Conductive 60.00 x 20.00 1524 x 508 72.00 x 24.00 1829 x 610
A72P24F2 Half Panel Painted steel 30.88 x 20.00 784 x 508 72.00 x 24.00 1829 x 610
A72P24F2G Half Panel Conductive 30.88 x 20.00 784 x 508 72.00 x 24.00 1829 x 610
A90P24F1 Full Panel Painted steel 78.00 x 20.00 1981 x 508 90.00 x 24.00 2286 x 610
A90P24F1G Full Panel Conductive 78.00 x 20.00 1981 x 508 90.00 x 24.00 2286 x 610
A90P24F2 Half Panel Painted steel 39.88 x 20.00 1013 x 508 90.00 x 24.00 2286 x 610
A90P24F2G Half Panel Conductive 39.88 x 20.00 1013 x 508 90.00 x 24.00 2286 x 610
A72P30F1 Full Panel Painted steel 60.00 x 26.00 1524 x 660 72.00 x 30.00 1829 x 762
A72P30F1G Full Panel Conductive 60.00 x 26.00 1524 x 660 72.00 x 30.00 1829 x 762
A72P30F2 Half Panel Painted steel 30.88 x 26.00 784 x 660 72.00 x 30.00 1829 x 762
A72P30F2G Half Panel Conductive 30.88 x 26.00 784 x 660 72.00 x 30.00 1829 x 762
A60P36F1 Full Panel Painted steel 48.00 x 32.00 1219 x 813 60.00 x 36.00 1524 x 914
A60P36F1G Full Panel Conductive 48.00 x 32.00 1219 x 813 60.00 x 36.00 1524 x 914
A60P36F2 Half Panel Painted steel 24.88 x 32.00 632 x 813 60.00 x 36.00 1524 x 914
A60P36F2G Half Panel Conductive 24.88 x 32.00 632 x 813 60.00 x 36.00 1524 x 914
A72P36F1 Full Panel Painted steel 60.00 x 32.00 1524 x 813 72.00 x 36.00 1829 x 914
A72P36F1G Full Panel Conductive 60.00 x 32.00 1524 x 813 72.00 x 36.00 1829 x 914
A72P36F2 Half Panel Painted steel 30.88 x 32.00 784 x 813 72.00 x 36.00 1829 x 914
A72P36F2G Half Panel Conductive 30.88 x 32.00 784 x 813 72.00 x 36.00 1829 x 914
A90P36F1 Full Panel Painted steel 78.00 x 32.00 1981 x 813 90.00 x 36.00 2286 x 914
A90P36F1G Full Panel Conductive 78.00 x 32.00 1981 x 813 90.00 x 36.00 2286 x 914
A90P36F2 Half Panel Painted steel 39.88 x 32.00 1013 x 813 90.00 x 36.00 2286 x 914
A90P36F2G Half Panel Conductive 39.88 x 32.00 1013 x 813 90.00 x 36.00 2286 x 914
Use combinations of panels for 3-5 door A 28 enclosures.
CHS Controls AB
Florettgatan 33
SE-254 67 Helsingborg, Sweden
Tel +46 42 38 61 00, Fax +46 42 38 61 29
chs@chscontrols.se
www.chscontrols.se

1307
Accessories: Panels and Panel Accessories
Panels for Enclosures
PH (763) 422-2211 • FX (763) 422-2600 • homanonline.com
Subject to change without notice © 2011 Pentair Technical Products
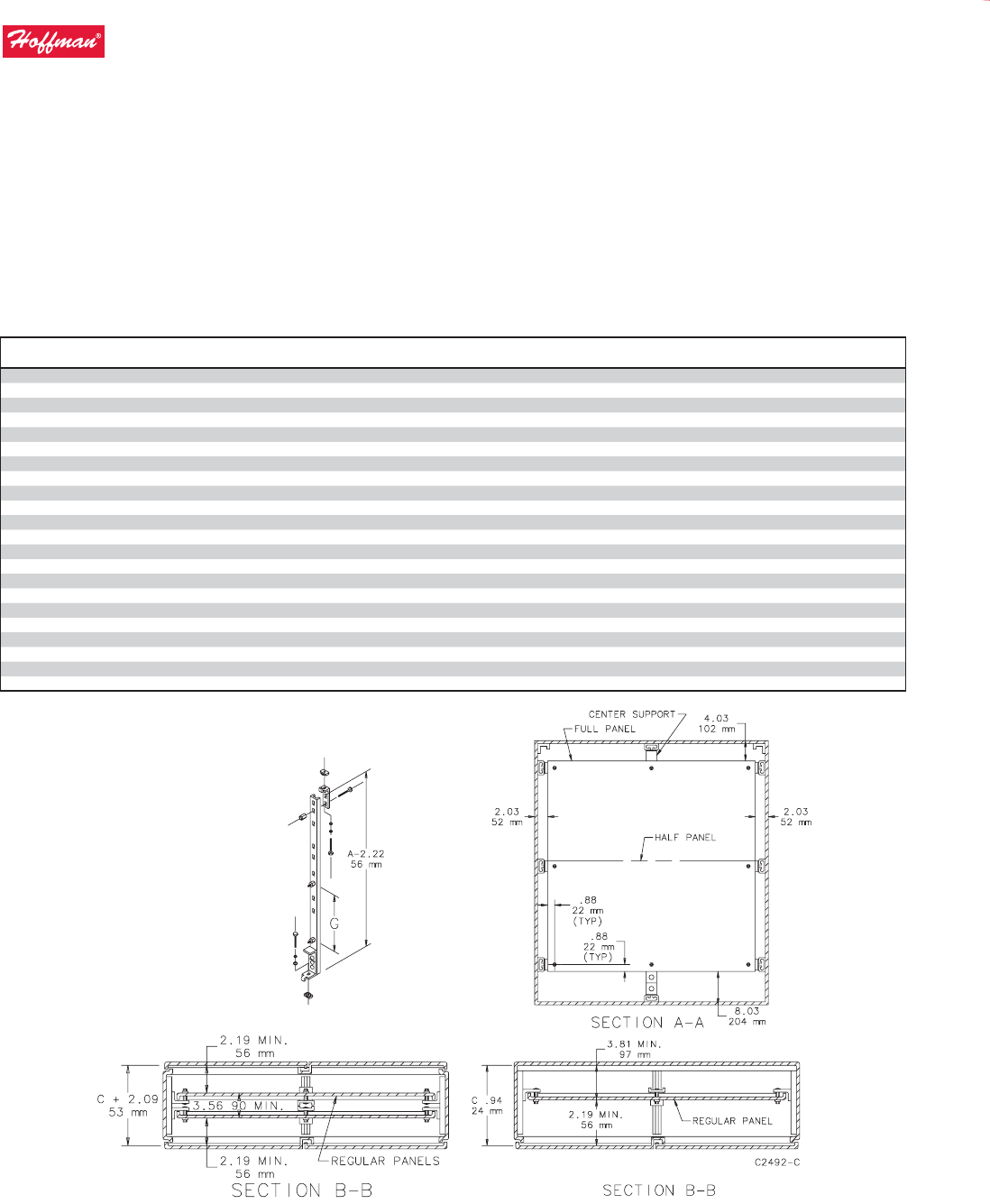
Panels for Free-Stand Type 4, 4X and 12 Single- and Dual-Access Two-Door Enclosures with
Mounting Channel
Panels for two-door single access and two-door dual access Free-Stand Type 4, 4X and 12 Enclosures with mounting channel are 10 gauge
steel and can be positioned anywhere along horizontal mounting channels (see Sections B-B for limitations). Half-length panels can be
located in the upper or lower portion of the enclosure. Some assembly is required.
Panels are nished with white polyester powder paint or a conductive, corrosion-resistant coating and furnished with plated mounting
hardware.
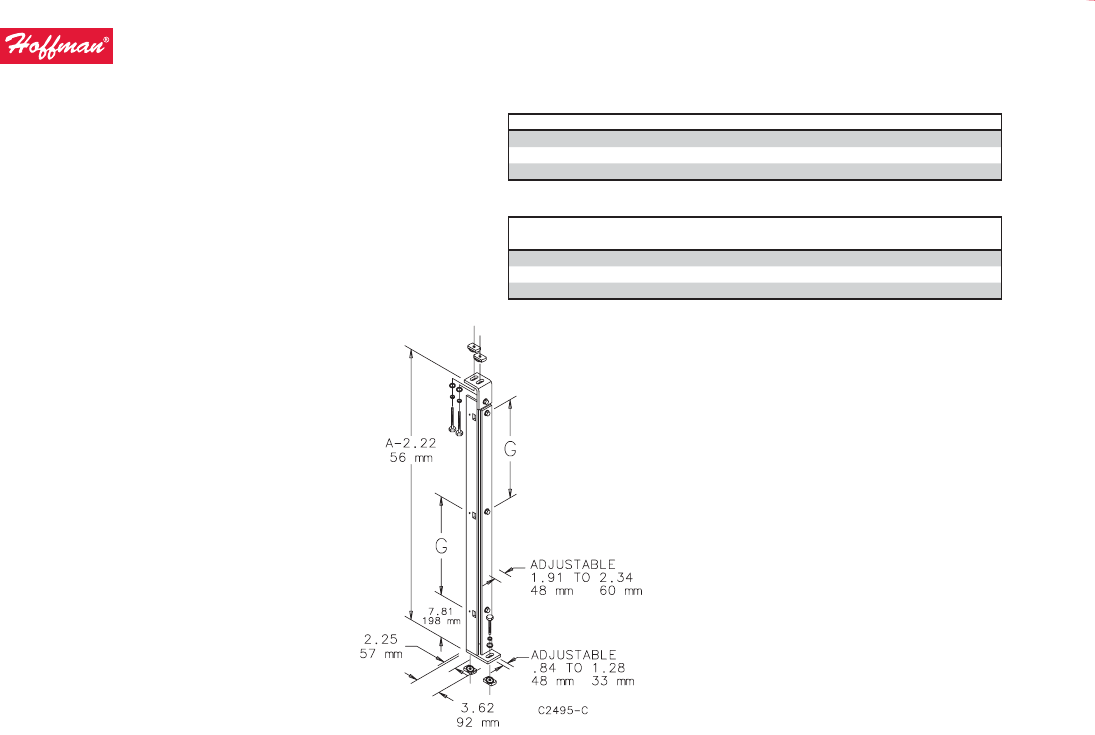
Center support is furnished with each full panel or half panel for two-door enclosures. The center support attaches to the top and bottom
mounting channels and can be positioned from front to back in the enclosure. The center support can be used with heavy duty panel
supports to support panels of various heights.
Bulletin: PNL30, PNLFS
Catalog Number Description
Fits Enclosure
A x B (in.)
Fits Enclosure
A x B (mm) Panel Size (in.) Panel Size (mm) G (in.) G (mm)
A60P48F1 Full Panel 60.00 x 48.00 1524 x 1219 48.00 x 44.00 1219 x 1118 23.12 587
A60P48F1G Full Panel 60.00 x 48.00 1524 x 1219 48.00 x 44.00 1219 x 1118 23.12 587
A72P48F1 Full Panel 72.00 x 48.00 1829 x 1219 60.00 x 44.00 1524 x 1118 29.12 740
A72P48F1G Full Panel 72.00 x 48.00 1829 x 1219 60.00 x 44.00 1524 x 1118 29.12 740
A72P48F2 Half Panel 72.00 x 48.00 1829 x 1219 30.88 x 44.00 784 x 1118 29.12 740
A72P48F2G Half Panel 72.00 x 48.00 1829 x 1219 30.88 x 44.00 784 x 1118 29.12 740
A90P48F1 Full Panel 90.00 x 48.00 2286 x 1219 78.00 x 44.00 1981 x 1118 38.12 968
A90P48F1G Full Panel 90.00 x 48.00 2286 x 1219 78.00 x 44.00 1981 x 1118 38.12 968
A90P48F2 Half Panel 90.00 x 48.00 2286 x 1219 39.88 x 44.00 1013 x 1118 38.12 968
A90P48F2G Half Panel 90.00 x 48.00 2286 x 1219 39.88 x 44.00 1013 x 1118 38.12 968
A72P60F1 Full Panel 72.00 x 60.00 1829 x 1524 60.00 x 56.00 1524 x 1422 29.12 740
A72P60F1G Full Panel 72.00 x 60.00 1829 x 1524 60.00 x 56.00 1524 x 1422 29.12 740
A72P60F2 Half Panel 72.00 x 60.00 1829 x 1524 30.88 x 56.00 784 x 1422 29.12 740
A72P60F2G Half Panel 72.00 x 60.00 1829 x 1524 30.88 x 56.00 784 x 1422 29.12 740
A72P72F1 Full Panel 72.00 x 72.00 1829 x 1829 60.00 x 68.00 1524 x 1727 29.12 740
A72P72F1G Full Panel 72.00 x 72.00 1829 x 1829 60.00 x 68.00 1524 x 1727 29.12 740
A72P72F2 Half Panel 72.00 x 72.00 1829 x 1829 30.88 x 68.00 784 x 1727 29.12 740
A72P72F2G Half Panel 72.00 x 72.00 1829 x 1829 30.88 x 68.00 784 x 1727 29.12 740
A90P72F1 Full Panel 90.00 x 72.00 2286 x 1829 78.00 x 68.00 1981 x 1727 38.12 968
A90P72F1G Full Panel 90.00 x 72.00 2286 x 1829 78.00 x 68.00 1981 x 1727 38.12 968
A90P72F2 Half Panel 90.00 x 72.00 2286 x 1829 39.88 x 68.00 1013 x 1727 38.12 968
A90P72F2G Half Panel 90.00 x 72.00 2286 x 1829 39.88 x 68.00 1013 x 1727 38.12 968
CHS Controls AB
Florettgatan 33
SE-254 67 Helsingborg, Sweden
Tel +46 42 38 61 00, Fax +46 42 38 61 29
chs@chscontrols.se
www.chscontrols.se

1308
Accessories: Panels and Panel Accessories
Panels for Enclosures
PH (763) 422-2211 • FX (763) 422-2600 • homanonline.com
Subject to change without notice © 2011 Pentair Technical Products
Side-Mounted Panels
Panels provide extra mounting space on the sides of enclosures. 12
gauge steel side-mounting panels are painted white. Conductive
panels are steel with a conductive, corrosion-resistant coating.
Panels attach securely to mounting channels. Plated steel mounting
hardware is furnished.
Bulletin: PNL30, PNLFS
Catalog Number Description
Panel Size
D x E
in./mm
Fits
Enclosure A
in./mm
A60SMP14 Painted steel 48.00 x 14.00
1219 x 356
60.00
1524
A60SMP14G Conductive 48.00 x 14.00
1219 x 356
60.00
1524
A72SMP14 Painted steel 60.00 x 14.00
1524 x 356
72.00
1829
A72SMP14G Conductive 60.00 x 14.00
1524 x 356
72.00
1829
A72SMP20 Painted steel 60.00 x 20.00
1524 x 508
72.00
1829
A72SMP20G Conductive 60.00 x 20.00
1524 x 508
72.00
1829
A90SMP14 Painted steel 78.00 x 14.00
1981 x 356
90.00
2286
A90SMP14G Conductive 78.00 x 14.00
1981 x 356
90.00
2286
A90SMP20 Painted steel 78.00 x 20.00
1981 x 508
90.00
2286
A90SMP20G Conductive 78.00 x 20.00
1981 x 508
90.00
2286
A90SMP14 and A90SMP14G will not t 18.06-in.deep two-door enclosures (FSD style) if regular panel is also
installed.
A90SMP20 and A90SMP20G will not t 20.12-in. deep enclosures. Will not t 24.12-in. deep two-door
enclosures (FSD style) if regular panel is also installed.
Heavy Duty Panel Supports
Heavy Duty Panel Supports, sold in pairs, are used in place of the
panel supports furnished with panels when heavy equipment will be
installed on the panels. They extend to the bottom of the enclosure.
Adjustable mounting studs allow mounting of dierent height panels
or a combination of panels. Use mounting hardware furnished with
panels.
Bulletin: A80
Catalog Number
Fits Enclosure A
in./mm
Support Length
in./mm
A60FSHDPS 60.00
1524
57.25
1454
A72FSHDPS 72.00
1829
69.25
1759
A90FSHDPS 90.00
2286
87.25
2216
CHS Controls AB
Florettgatan 33
SE-254 67 Helsingborg, Sweden
Tel +46 42 38 61 00, Fax +46 42 38 61 29
chs@chscontrols.se
www.chscontrols.se

1309
Accessories: Panels and Panel Accessories
Panels for Enclosures
PH (763) 422-2211 • FX (763) 422-2600 • homanonline.com
Subject to change without notice © 2011 Pentair Technical Products
Center Panel Supports
Center panel supports are used with Free-Stand Type 12 (Bulletin
A30) two-door enclosures. They permit the installation of panels,
swing-out panels and rack-mounting angles sized for one-door
enclosures. The Center Panel Support can be positioned from front to
back of the enclosure.
Bulletin: A80
Standard Product Panel Supports
Catalog Number Fits Enclosure A (in.) Fits Enclosure A (mm) G (in.) G (mm)
A60FSCPS 60.00 1524 23.12 587
A72FSCPS 72.00 1829 29.12 740
A90FSCPS 90.00 2286 38.12 968
Accessory Width with Center Panel Supports
Two Door Enclosure Width
(in.)
Two Door Enclosure Width
(mm)
Accessory Width
(in.)
Accessory Width
(mm)
48.00 1219 24.00 610
60.00 1524 30.00 762
72.00 1829 36.00 914
CHS Controls AB
Florettgatan 33
SE-254 67 Helsingborg, Sweden
Tel +46 42 38 61 00, Fax +46 42 38 61 29
chs@chscontrols.se
www.chscontrols.se

1310
Accessories: Panels and Panel Accessories
Panels for Enclosures
PH (763) 422-2211 • FX (763) 422-2600 • homanonline.com
Subject to change without notice © 2011 Pentair Technical Products
CHS Controls AB
Florettgatan 33
SE-254 67 Helsingborg, Sweden
Tel +46 42 38 61 00, Fax +46 42 38 61 29
chs@chscontrols.se
www.chscontrols.se

1311
Accessories: Panels and Panel Accessories
Panels for Enclosures
PH (763) 422-2211 • FX (763) 422-2600 • homanonline.com
Subject to change without notice © 2011 Pentair Technical Products
Swing-Out Panels for Free-Stand Type 4, 4X and 12 Enclosures with Mounting Channel
Panels for Free-Stand Type 12 Enclosures, Free-Stand Type 4 Enclosures and One-Door Type 4X Free-Stand Fiberglass Enclosures.
Full-length and half-length swing-out panels are available. Half-length panels can be located in the upper or lower portion of the enclosures.
Swing-out panels have a 10 gauge steel support frame and two heavy-gauge continuous hinges which permit the panel to swing completely
out of the enclosure if it is located within approximately 10.75 in. (273 mm) of the door. These panels are 12 gauge steel and can be mounted
on either side of the enclosure. Panels are nished with white polyester powder paint and furnished with plated mounting hardware.
Bulletin: PNL30
Catalog Number Description Panel Size D x E (in.) Panel Size D x E (mm) Fits Enclosure A x B (in.) Fits Enclosure A x B (mm) Q (in.) Q (mm)
A72SP24F3 Full Panel 60.00 x 18.81 1524 x 478 72.00 x 24.00 1829 x 610 21.84 555
A72SP24F4 Half Panel 30.88 x 18.81 784 x 478 72.00 x 24.00 1829 x 610 21.84 555
A72SP30F3 Full Panel 60.00 x 24.81 1524 x 630 72.00 x 30.00 1829 x 762 27.84 707
A72SP30F4 Half Panel 30.88 x 24.81 784 x 630 72.00 x 30.00 1829 x 762 27.84 707
A72SP36F3 Full Panel 60.00 x 30.81 1524 x 783 72.00 x 36.00 1829 x 914 33.84 860
A72SP36F4 Half Panel 30.88 x 30.81 784 x 783 72.00 x 36.00 1829 x 914 33.84 860
A90SP36F3 Full Panel 78.00 x 30.81 1981 x 783 90.00 x 36.00 2286 x 914 33.84 860
A90SP36F4 Half Panel 39.88 x 30.81 1013 x 783 90.00 x 36.00 2286 x 914 33.84 860
Panels for WiFi Cabinets and Small Wall-Mount
Enclosures
Panels are available in both steel and wood. Steel panels are 14 gauge
steel with a white polyester powder paint nish. Wood panels are
3/4-in. plywood and are unnished. Wood panels are supplied with
Fiberglass Hinged-Cover and POLYPRO® Type 4X WiFi Cabinets.
Bulletin: DWS12, PNLJ, PNLWM
Catalog Number Material
Panel Size
D x E (in.)
Panel Size
D x E (mm) V (in.) V (mm)
A6P6 Steel 4.88 x 4.88 124 x 124 0.31 8
A6P6WD Wood 4.88 x 4.88 124 x 124 0.31 8
A16P14 Steel 14.75 x 12.88 375 x 327 0.25 6
A16P14WD Wood 14.75 x 12.88 375 x 327 0.25 6
A18P16 Steel 16.75 x 14.88 425 x 378 0.25 6
A18P16WD Wood 16.75 x 14.88 425 x 378 0.25 6

1312
Accessories: Panels and Panel Accessories
Panels for Open Frame Racks
PH (763) 422-2211 • FX (763) 422-2600 • homanonline.com
Subject to change without notice © 2011 Pentair Technical Products
Panels for Ope n Frame Racks
Rack Panel for 19-in. Racks
Used to cover unused rack space
in cabinets or open frame racks
for a nished appearance. Can
also be used for surface mounting
small devices. Panels are at with
mounting slots spaced at 19-in. EIA
standard spacing. Made of 12 gauge
steel with RAL 9005 black polyester
powder paint nish. Mounting
hardware sold separately.
Bulletin: DOFRY
Catalog Number Rack Units E (in.) E (mm)
P19RPP1UB 1 1.75 44
P19RPP2UB 2 3.50 89
P19RPP3UB 3 5.25 133
P19RPP4UB 4 7.00 178
P19RPP5UB 5 8.75 222
P19RPP6UB 6 10.50 267
Tool-less (Snap-in) Blanking Panels for 19-in. Racks
These Tool-less 19-in. Blanking
Panels provide easy tool-less
installation and ensure proper
airow to equipment. Made of black
composite material and can be used
with tapped or square EIA universal
spaced rack mounting angles.
Bulletin: DACCY
Catalog Number Description
Rack
Units Fits
Pkg.
Qty.
D19BPT1RU Blanking Panel, 19 in. 1 19 in., universal rack spacing,
tapped or square holes
10
D19BPT2RU Blanking Panel, 19 in. 2 19 in., universal rack spacing,
tapped or square holes
10
CHS Controls AB
Florettgatan 33
SE-254 67 Helsingborg, Sweden
Tel +46 42 38 61 00, Fax +46 42 38 61 29
chs@chscontrols.se
www.chscontrols.se

1313
Accessories: Panels and Panel Accessories
Panels for Open Frame Racks
PH (763) 422-2211 • FX (763) 422-2600 • homanonline.com
Subject to change without notice © 2011 Pentair Technical Products
Rack Panels Rack Panels are available in aluminum and painted steel. Aluminum
Rack Panels are .125-in.-thick 5052-H32 alloy. Steel Rack Panels are 12
gauge steel and nished in RAL 7035 textured light-gray polyester
powder paint. All panels are at with oblong holes positioned at EIA
standard spacing. Mounting hardware is sold separately.
Bulletin: P20
Catalog Number Material Rack Angle Size Rack Units
P19RP1UA Aluminum 19 in. 1
P19RP1UP Steel 19 in. 1
P19RP2UA Aluminum 19 in. 2
P19RP2UP Steel 19 in. 2
P19RP3UA Aluminum 19 in. 3
P19RP3UP Steel 19 in. 3
P19RP4UA Aluminum 19 in. 4
P19RP4UP Steel 19 in. 4
P19RP5UA Aluminum 19 in. 5
P19RP5UP Steel 19 in. 5
P19RP6UP Steel 19 in. 6
P19RP6UA Aluminum 19 in. 6
P19RP7UA Aluminum 19 in. 7
P19RP7UP Steel 19 in. 7
P19RP8UP Steel 19 in. 8
P19RP8UA Aluminum 19 in. 8
P19RP9UA Aluminum 19 in. 9
P19RP9UP Steel 19 in. 9
P19RP10UA Aluminum 19 in. 10
P19RP10UP Steel 19 in. 10
P19RP11UA Aluminum 19 in. 11
P19RP11UP Steel 19 in. 11
P19RP12UA Aluminum 19 in. 12
P19RP12UP Steel 19 in. 12
P19RP16UA Aluminum 19 in. 16
P19RP16UP Steel 19 in. 16
P23RP1UA Aluminum 23 in. 1
P23RP1UP Steel 23 in. 1
P23RP2UP Steel 23 in. 2
P23RP3UA Aluminum 23 in. 3
P23RP3UP Steel 23 in. 3
P23RP4UA Aluminum 23 in. 4
P23RP4UP Steel 23 in. 4
P24RP2UA Aluminum 24 in. 2
P24RP2UP Steel 24 in. 2
P24RP3UP Steel 24 in. 3
P24RP4UA Aluminum 24 in. 4
P24RP4UP Steel 24 in. 4
P24RP5UA Aluminum 24 in. 5
P24RP5UP Steel 24 in. 5
P24RP6UP Steel 24 in. 6
P24RP8UA Aluminum 24 in. 8
P24RP8UP Steel 24 in. 8
CHS Controls AB
Florettgatan 33
SE-254 67 Helsingborg, Sweden
Tel +46 42 38 61 00, Fax +46 42 38 61 29
chs@chscontrols.se
www.chscontrols.se

1314
Accessories: Panels and Panel Accessories
Panel Accessories
PH (763) 422-2211 • FX (763) 422-2600 • homanonline.com
Subject to change without notice © 2011 Pentair Technical Products
Panel Accesso ries
Panel Lifting Hooks Used to lift a large interior panel to position it in an enclosure lying
on its back and to transport a panel from one location to another.
Comfortable hand grip. Plated nish.
Bulletin: A80
Catalog Number Description
APLH Two lifting hooks with handles
Panel Support Kit Provide additional support for panels on which heavy components
are mounted. Each panel support ts over a collar stud and is then
adjusted so the weight of the panel is partially supported by the
bottom of the enclosure. Locknuts prevent accidental change in
adjustment. A polyethylene-covered base on each panel support
distributes the panel weight and prevents damage to the interior
nish. Constructed of heavy-gauge steel. White nish.
Bulletin: A80
Catalog Number Description
APS3 Two panel supports for 1-door or 2-door enclosures where distance from bottom
of panel to bottom of enclosure is less than 2.25 inches (57mm).
APS9 Two panel supports for free-standing or multi-door enclosures where distance
from bottom of panel to bottom of enclosure is between 2.88 inches (73mm)
and 8.50 inches (216mm).
CHS Controls AB
Florettgatan 33
SE-254 67 Helsingborg, Sweden
Tel +46 42 38 61 00, Fax +46 42 38 61 29
chs@chscontrols.se
www.chscontrols.se

1315
Accessories: Window Kits
Window Kits
PH (763) 422-2211 • FX (763) 422-2600 • homanonline.com
Subject to change without notice © 2011 Pentair Technical Products
Window Kits
Window Kits
Steel and Stainless Steel Window Kits
Industry Standards
UL 508A Component Recognized; Type 4, 4X (stainless steel
version only), 12, 13; File No. E61997
CSA Type 4, 4X (stainless steel version only), 12,13; File No. 42186
NEMA/EEMAC 4, 4X (stainless steel version only), 12, 13
IEC 60529, IP66
Steel Window Kits are designed to be used on Type 4 and 12
enclosures. Stainless Steel Window Kits are suitable for Type 4, 4X, 12
and 13 enclosures in indoor or outdoor applications where corrosion
is a problem. These kits are easily installed by making a cutout in
the enclosure and attaching the window and frame in place. Frames
are made from heavy-gauge steel with an ANSI 61 gray polyester
powder nish over pretreated surfaces or from heavy-gauge Type
304 stainless steel with a brushed nish. The window is .25-in. (6-
mm) acrylic for steel kits or .25-in. (6-mm) polycarbonate material
for stainless steel kits. Oil-resistant gasketing ensures a water-tight
seal around the perimeter of the window and frame. All mounting
hardware is furnished. Custom sizes, materials and nishes can be
provided on special order. Consult factory for information.
Bulletin: A80SW, A80W
Catalog Number AxB in. AxB mm Material
Window Size
M x N (in.)
Window Size
M x N (mm)
Required Cutout
Size G x H (in.)
Required Cutout
Size G x H (mm)
APWK53NF 7.50 x 5.50 191 x 140 Steel 5.00 x 3.00 127 x 76 6.69 x 4.69 170 x 119
APWK53NFSS 7.50 x 5.50 191 x 140 Stainless Steel 5.00 x 3.00 127 x 76 6.69 x 4.69 170 x 119
APWK95NF 11.50 x 8.00 292 x 203 Steel 9.00 x 5.50 229 x 140 10.69 x 7.19 272 x 183
APWK95NFSS 11.50 x 8.00 292 x 203 Stainless Steel 9.00 x 5.50 229 x 140 10.69 x 7.19 272 x 183
APWK711NFSS 13.50 x 9.50 343 x 241 Stainless Steel 11.00 x 7.00 279 x 178 12.69 x 8.69 392 x 211
APWK133NF 15.50 x 5.50 394 x 140 Steel 13.00 x 3.00 330 x 76 14.69 x 4.69 373 x 119
APWK138NF 15.50 x 10.50 394 x 267 Steel 13.00 x 8.00 330 x 203 14.69 x 9.69 373 x 246
APWK138NFSS 15.50 x 10.50 394 x 267 Stainless Steel 13.00 x 8.00 330 x 203 14.69 x 9.69 373 x 246
APWK715NFSS 17.50 x 9.50 343 x 445 Stainless Steel 15.00 x 7.00 381 x 178 16.69 x 8.69 424 x 211
APWK175NF 19.50 x 8.00 495 x 203 Steel 17.00 x 5.50 432 x 140 18.69 x 7.19 475 x 183
APWK1711NF 19.50 x 13.50 495 x 343 Steel 17.00 x 11.00 432 x 279 18.69 x 12.69 475 x 322
APWK1711NFSS 19.50 x 13.50 495 x 343 Stainless Steel 17.00 x 11.00 432 x 279 18.69 x 12.69 475 x 322
APWK720NFSS 22.50 x 9.50 572 x 241 Stainless Steel 20.00 x 7.00 508 x 178 21.69 x 8.69 551 x 221
APWK2315NF 25.50 x 17.50 648 x 445 Steel 23.00 x 15.00 584 x 381 24.69 x 16.69 627 x 424
APWK2315NFSS 25.50 x 17.50 648 x 445 Stainless Steel 23.00 x 15.00 584 x 381 24.69 x 16.69 627 x 424
APWK724NFSS 26.50 x 9.50 673 x 241 Stainless Steel 24.00 x 7.00 610 x 178 25.69 x 8.69 653 x 221
APWK729NFSS 31.50 x 9.50 800 x 241 Stainless Steel 29.00 x 7.00 737 x 178 30.69 x 8.69 780 x 221
APWK2919NF 31.50 x 21.50 800 x 546 Steel 29.00 x 19.00 737 x 483 30.69 x 20.69 780 x 526
APWK2919NFSS 31.50 x 21.50 800 x 546 Stainless Steel 29.00 x 19.00 737 x 483 30.69 x 20.69 780 x 526
APWK3523NF 37.50 x 25.50 953 x 445 Steel 35.00 x 23.00 889 x 584 36.69 x 24.69 932 x 627
When determining if a window kit will t in a door or cover, be sure to allow for gaskets, data pockets, door handles, latch rods and other parts attached to the door or cover.
CHS Controls AB
Florettgatan 33
SE-254 67 Helsingborg, Sweden
Tel +46 42 38 61 00, Fax +46 42 38 61 29
chs@chscontrols.se
www.chscontrols.se

1316
Accessories: Window Kits
Window Kits
PH (763) 422-2211 • FX (763) 422-2600 • homanonline.com
Subject to change without notice © 2011 Pentair Technical Products
Frameless Window Kit Designed for use on many Type 12 and 13 enclosures. These kits are
for indoor use in a temperature range of 55 F to 125 F (13 C to 52
C). For more severe conditions use Steel or Stainless Steel Window
Kits. The window is scratch-resistant .12-in. (3-mm) polycarbonate.
Special high-strength, double-sided tape is supplied as well as screw
fasteners. Windows can be cut to smaller sizes. Allow .50-in. (13-mm)
overlap on each side of window for tape.
Bulletin: A80W
Catalog Number
Window Size
in./mm
Maximum Cutout Size
in./mm
APWKE52 5.50 x 3.00
140 x 76
4.50 x 2.00
114 x 51
APWKE96 9.62 x 7.19
244 x 183
8.62 x 6.19
219 x 157
APWKE133 13.88 x 3.88
353 x 99
12.88 x 2.88
327 x 73
Wing Knobs for CONCEPT® Window Kits
Knobs are optional latching for
hinged windows and hinged bezels.
Knobs are black and available in
locking and nonlocking versions.
Keylocking knob maintains Type 12
rating only.
Bulletin: C2
Catalog Number Description
CWKL Wing Knob, locking
CWKN Wing Knob, nonlocking
CONCEPT® Fixed and Hinged Window Kits
Aesthetic die-cast aluminum frame has .188-in. (5-mm) thick, clear
polycarbonate window. Pre-assembled kit is secured to front opening
of enclosure by four mounting screws. Furnished window frame caps
conceal mounting screws. Hinged window kit is hinged on left side
and has a single-point slotted latch (optional locking or non-locking
wing knob latch is also available). Textured nish, ANSI 61 gray or RAL
7035 light gray.
Bulletin: C2
Catalog Number AxBxC in. AxBxC mm Finish Description Window Size M x N (mm) Window Size M x N (in.)
CWF3136 12.20 x 14.17 x 1.26 310 x 360 x 32 ANSI 61 Fixed window kit 253 x 276 9.96 x 10.86
CWF3136LG 12.20 x 14.17 x 1.26 310 x 360 x 32 RAL 7035 Fixed window kit 253 x 276 9.96 x 10.86
CWH3136 12.20 x 14.17 x 1.34 310 x 360 x 34 ANSI 61 Hinged window kit 253 x 276 9.96 x 10.86
CWH3136LG 12.20 x 14.17 x 1.34 310 x 360 x 34 RAL 7035 Hinged window kit 253 x 276 9.96 x 10.86
CWF4045 15.75 x 17.72 x 1.30 400 x 450 x 33 ANSI 61 Fixed window kit 343 x 366 13.50 x 14.40
CWF4045LG 15.75 x 17.72 x 1.30 400 x 450 x 33 RAL 7035 Fixed window kit 343 x 366 13.50 x 14.40
CWH4045 15.75 x 17.72 x 1.38 400 x 450 x 35 ANSI 61 Hinged window kit 343 x 366 13.50 x 14.40
CWH4045LG 15.75 x 17.72 x 1.38 400 x 450 x 35 RAL 7035 Hinged window kit 343 x 366 13.50 x 14.40
CWF5557 21.65 x 22.44 x 1.42 550 x 570 x 36 ANSI 61 Fixed window kit 493 x 486 19.40 x 19.13
CWF5557LG 21.65 x 22.44 x 1.42 550 x 570 x 36 RAL 7035 Fixed window kit 493 x 486 19.40 x 19.13
CWH5557 21.65 x 22.44 x 1.50 550 x 570 x 38 ANSI 61 Hinged window kit 493 x 486 19.40 x 19.13
CHS Controls AB
Tel +46 42 38 61 00, Fax +46 42 38 61 29
chs@chscontrols.se www.chscontrols.se

1317
Accessories: Window Kits
Window Kits
PH (763) 422-2211 • FX (763) 422-2600 • homanonline.com
Subject to change without notice © 2011 Pentair Technical Products
CONCEPT® Deep Hinged Window Kit
Kit is hinged on left side and has a single-point slotted latch
(optional locking or non-locking wing knob latch is also available).
Aesthetic die-cast aluminum frame has .188-in. (5-mm) thick, clear
polycarbonate window. Two-inch space between enclosure front
opening and window surface accommodates switches, lights, meters
and other components. This kit can be used as an accessory window
kit on larger standard Homan enclosure doors. Textured nish, ANSI
61 gray or RAL 7035 light gray.
Bulletin: C2
Catalog Number AxBxC in. AxBxC mm Finish Window Size M x N (mm) Window Size M x N (in.)
CWHD3136 12.20 x 14.17 x 3.31 310 x 360 x 84 ANSI 61 253 x 276 9.96 x 10.86
CWHD3136LG 12.20 x 14.17 x 3.31 310 x 360 x 84 RAL 7035 253 x 276 9.96 x 10.86
CWHD4045 15.75 x 17.72 x 3.39 400 x 450 x 86 ANSI 61 343 x 366 13.50 x 14.40
CWHD4045LG 15.75 x 17.72 x 3.39 400 x 450 x 86 RAL 7035 343 x 366 13.50 x 14.40
CWHD5557 21.65 x 22.44 x 3.50 550 x 570 x 89 ANSI 61 493 x 486 19.40 x 19.13
Type 12 Hinged Window Kit
Industry Standards
UL 508A Component Recognized; Type 12; File No. E61997
CSA Type 12; File No. 42186
NEMA/EEMAC Type 12
IEC 60529, IP55
For use as a viewing window where access to components mounted
behind the window is required. Window is .25-in. (6-mm) clear acrylic.
Easily mounted by drilling the appropriate mounting holes. All
mounting hardware is provided. Continuous gaskets on all openings
maintain UL Type 12 integrity. Finish is ANSI 61 gray polyester powder
paint.
Bulletin: A80W
Catalog Number
Window Size M x N
in./mm
Overall L x W
in./mm
S
in./mm
T
in./mm
APWK1212H 10.28 x 10.28
261 x 261
12.00 x 12.00
305 x 305
10.44
265
10.44
265
APWK1612H 14.28 x 10.28
363 x 261
16.00 x 12.00
406 x 305
10.44
265
14.44
367
APWK2016H 18.28 x 14.28
464 x 363
20.00 x 16.00
508 x 406
14.44
367
18.44
468
APWK2020H 18.28 x 18.28
464 x 464
20.00 x 20.00
508 x 508
18.44
468
18.44
468
APWK2420H 22.28 x 18.28
566 x 464
24.00 x 20.00
610 x 508
18.44
468
22.44
570
APWK3024H 28.28 x 22.28
718 x 566
30.00 x 24.00
762 x 610
22.44
570
28.44
722
CHS Controls AB
Florettgatan 33
SE-254 67 Helsingborg, Sweden
Tel +46 42 38 61 00, Fax +46 42 38 61 29
chs@chscontrols.se
www.chscontrols.se

1318
Accessories: Window Kits
Window Kits
PH (763) 422-2211 • FX (763) 422-2600 • homanonline.com
Subject to change without notice © 2011 Pentair Technical Products
Type 4 and 4X Deep-Hinged Window Kits
Industry Standards
Stainless Steel
UL 508A Listed; Type 3R, 4, 4X, 12; File No. E61997
cUL Listed per CSA C22.2, No. 94; Type 3R, 4, 4X, 12; File No.
E61997
NEMA/EEMAC Type 3R, 4, 4X, 12
IEC 60529, IP66
Mild Steel
UL 508A Listed; Type 4, 12; File No. E61997
cUL Listed per CSA C22.2 No. 94; Type 4, 12; File No. E61997
NEMA/EEMAC Type 4, 12
Application
Deep-hinged window kits provide protection, visibility and easy
access to equipment and components installed behind the viewing
area. Window kits are conveniently sized to allow direct mounting in
the usable door area of Homan NEMA and CONCEPT® wall-mount
enclosures, as well as any Homan enclosure with a suitably sized
mounting surface. Deep-hinged window kits provide protection,
visibility and easy access to equipment and components installed
behind the viewing area. These kits have an aesthetic appearance,
quarter-turn latching for easy access, .25-in. (6-mm) thick, clear
polycarbonate material for viewing, 2.5-in. (64-mm) depth to allow
for deep controls and a built-in gasket compression stop to facilitate
ush mounting. Each kit comes with a mounting template and
hardware to allow for easy installation and can be mounted either left
or right hinged.
Specications
• Manufactured from Type 316L stainless steel or painted mild steel
• Quarter-turn latches for quick access
• 0.25-in. (6-mm) thick, clear polycarbonate windows for easy
viewing
• 2.5-in. (64-mm) deep to allow for deep controls
• Built-in gasket compression stop on back of window kit facilitates
ush mounting
• Designed for either left or right hinging
• Includes mounting template and mounting hardware
• Easy-to-remove clip-style hinge pin
Finish
• Stainless steel: Enclosures are unpainted; door and body have a
smooth #4 brushed nish
• Mild steel: ANSI 61 gray polyester powder paint inside and out
Accessories
Touch-up Paint (ATPPY61)
Options
Optional Handles
CWHNL - Nonlocking
CWHK - Keylocking
CWHPTO - Padlocking
Bulletin: A80SW, A80W
Standard Product
Catalog Number AxBxC in./mm Material
Window Size
M x N
in./mm
AWDH1418N4 12.19 x 14.56 x 2.73
310 x 370 x 69
Steel 8.93 x 9.86
227 x 250
AWDH1418N4SS 12.19 x 14.56 x 2.73
310 x 370 x 69
316L Stainless steel 8.93 x 9.86
227 x 250
AWDH1612N4 14.19 x 8.14 x 2.73
360 x 207 x 69
Steel 10.91 x 3.39
277 x 66
AWDH1612N4SS 14.19 x 8.14 x 2.73
360 x 207 x 69
316L Stainless steel 10.91 x 3.39
277 x 66
AWDH2016N4 18.19 x 12.14 x 2.73
462 x 308 x 69
Steel 15.60 x 8.08
396 x 205
AWDH2016N4SS 18.19 x 12.14 x 2.73
462 x 308 x 69
316L Stainless steel 15.60 x 8.08
396 x 205
AWDH2416N4 22.19 x 12.14 x 2.73
563 x 308 x 69
Steel 19.60 x 8.08
498 x 205
AWDH2416N4SS 22.19 x 12.14 x 2.73
563 x 308 x 69
316L Stainless steel 19.60 x 8.08
498 x 205
AWDH2420N4 22.19 x 16.14 x 2.73
563 x 410 x 69
Steel 19.60 x 12.08
498 x 307
AWDH2420N4SS 22.19 x 16.14 x 2.73
563 x 410 x 69
316L Stainless steel 19.60 x 12.08
498 x 307
AWDH2430N4 22.19 x 26.14 x 2.73
563 x 664 x 69
Steel 19.60 x 20.89
498 x 531
AWDH2430N4SS 22.19 x 26.14 x 2.73
563 x 664 x 69
316L Stainless steel 19.60 x 20.89
498 x 531
AWDH3024N4 28.19 x 20.14 x 2.73
716 x 512 x 69
Steel 25.60 x 14.89
650 x 378
AWDH3024N4SS 28.19 x 20.14 x 2.73
716 x 512 x 69
316L Stainless steel 25.60 x 14.89
650 x 378
AWDH3624N4 34.19 x 20.14 x 2.73
868 x 512 x 69
Steel 31.60 x 14.89
803 x 378
AWDH3624N4SS 34.19 x 20.14 x 2.73
868 x 512 x 69
316L Stainless steel 31.60 x 14.89
803 x 378
A
B
M
N
87948405
C
CHS Controls AB
Florettgatan 33
SE-254 67 Helsingborg, Sweden
Tel +46 42 38 61 00, Fax +46 42 38 61 29
chs@chscontrols.se
www.chscontrols.se

1319
Accessories: Window Kits
Window Kits
PH (763) 422-2211 • FX (763) 422-2600 • homanonline.com
Subject to change without notice © 2011 Pentair Technical Products
Notes
CHS Controls AB
Florettgatan 33
SE-254 67 Helsingborg, Sweden
Tel +46 42 38 61 00, Fax +46 42 38 61 29
chs@chscontrols.se
www.chscontrols.se

1320
Accessories: Door Accessories
Door Stops
PH (763) 422-2211 • FX (763) 422-2600 • homanonline.com
Subject to change without notice © 2011 Pentair Technical Products
Door Accesso ries
Door Stops
Door Stop Kit Designed for use on most standard Homan Type 4 and 12
enclosures to secure the door in the open position. Enclosures must
have a “B” dimension of 16.00 in. (406 mm) or more and a door
which opens horizontally. Door Stop Kit can be mounted at the top
or bottom of the door opening after drilling two small holes in the
body of the enclosure and two small holes in the door. The angle of
the door is easily adjusted by means of a wingnut, and the stop arm
slides neatly out of the way when the door is closed. All parts are
plated. Maintains UL/CSA Type 4 and Type 12 if properly installed
in a Homan enclosure. Door Stop Kit is not intended for use on
CONCEPT® window door enclosures, or enclosures congured with a
swing-out panel or swing-out rack frame.
Bulletin: A80
Catalog Number Description
ADSTOPK Door Stop Kit
Type 316 Stainless Steel Door Stop Kit Application
Type 316 stainless steel door stop kit is available for use in
applications that require the kind of corrosion protection that only
Type 316 stainless steel can provide. Typical applications include
water treatment, pulp, paper, petroleum, chemical, food and
pharmaceutical processing, and packaging. Kit includes all mounting
hardware. Secures doors in the open position. Can be mounted at
either top or bottom of door. Can be installed on either left- or right-
hinged doors. Maintains an enclosure’s Type 4X rating. Easy to install.
Mounting hardware is Type 316 stainless steel.
This door stop kit can only be mounted in wall-mount enclosures.
Features
• Can be mounted at either top or bottom of door
• Can be installed on either left- or right-hinged doors
• Maintains an enclosure’s Type 4X rating
• Easy to install
Specications
• Kit, including mounting hardware, constructed of Type 316
stainless steel
Bulletin: A4SY
Catalog Number Description
ADSTOPKSS6 Type 316 stainless steel door stop kit
Large Enclosure Door Stop Kit Designed for use with most standard, large mild and stainless steel
enclosures to secure the door in the 90 degree open position. Door
Stop Kit can be mounted at the top or bottom of the door opening
after drilling two small holes in the door and enclosure. All parts are
plated. Maintains UL/CSA Type 4 and Type 12 if properly installed in a
Homan enclosure.
Bulletin: A34Y
Catalog Number Description
ALGDSTOP2 Large Enclosure Door Stop Kit
CHS Controls AB
Florettgatan 33
SE-254 67 Helsingborg, Sweden
Tel +46 42 38 61 00, Fax +46 42 38 61 29
chs@chscontrols.se
www.chscontrols.se

1321
Accessories: Door Accessories
Data Pockets
PH (763) 422-2211 • FX (763) 422-2600 • homanonline.com
Subject to change without notice © 2011 Pentair Technical Products
Data Pockets
Thermoplastic Data Pocket
Provides a convenient place to store wiring diagrams, operation
manuals and other documentation inside the enclosure. Adhesive-
backed pockets mount inside the solid enclosure cover. Mounting
hardware included. Thermoplastic pockets are dark gray and have
cut-away areas for easy inspection of contents.
Bulletin: UX1Y
Catalog Number Description
Size L x W
in./mm
ADP1 Small pocket 6.00 x 6.00
152 x 152
ADP2 Large pocket 12.00 x 12.00
305 x 305
Metal Data Pocket
Three-inch (76-mm) deep Metal Data Pocket provides a convenient
place to store wiring diagrams, operation manuals and other
documentation inside the enclosure. Large enough to store 3-ring
binders. Mounting hardware is included. Painted white and has cut-
away areas for easy inspection of contents.
Bulletin: A34Y
Catalog Number
Fits A x B
in./mm
Size L x W
in./mm
ADP3 greater than or equal to
30.00 x 24.00
greater than or equal to
762 x 610
12.00 x 12.00
305 x 305
CHS Controls AB
Florettgatan 33
SE-254 67 Helsingborg, Sweden
Tel +46 42 38 61 00, Fax +46 42 38 61 29
chs@chscontrols.se
www.chscontrols.se

1322
Accessories: Door Accessories
Data Pockets
PH (763) 422-2211 • FX (763) 422-2600 • homanonline.com
Subject to change without notice © 2011 Pentair Technical Products
External Data Pockets, Type 4/4X/12
Industry Standards
Mild Steel Models:
UL 508A Listed; Type 4, 12; File No. E61997
cUL Listed per C22.2 No. 94; Type 4, 12; File No. E61997
NEMA/EEMAC Type 4, 12
IEC 60529, IP66
Stainless Steel Models:
UL 508A Listed; Type 4, 4X, 12; File No. E61997
cUL Listed per C22.2 No. 94; Type 4, 4X, 12; File No. E61997
NEMA/EEMAC Type 4, 4X, 12
IEC 60529, IP66
Application
Mounted on the exterior of an enclosure, Data Pockets allow access
to system documentation without having to open the enclosure
door.
Features
• Available in mild steel or stainless steel to match the enclosure
nish
• Foam-in-place gasket to protect documentation from harsh
environments
• Hinged front for easy access to contents
• Three sizes accommodate a wide variety of documents
•
Sloped top sheds liquids and prevents accumulation of extraneous
material
• Optional wing knob and keylock inserts available for additional
security
Specications
• 16 gauge steel or 16 gauge Type 304 stainless steel
• Front of pocket hinges away from frame
Finish
Mild steel models are either ANSI 61 medium-gray or RAL 7035 light-
gray polyester powder nish inside and out. Stainless steel models
have brushed nish.
Accessories
Key Inserts
Wing Knob Latch
Bulletin: A70E
Standard Product
Catalog Number AxBxC in. AxBxC mm Finish G (in.) G (mm) H (in.) H (mm) J (in.) J (mm)
ADPX4A 15.10 x 12.25 x 3.18 384 x 311 x 81 ANSI 61 paint 12.00 305 10.00 254 14.25 362
ADPX4ALG 15.10 x 12.25 x 3.18 384 x 311 x 81 RAL 7035 paint 12.00 305 10.00 254 14.25 362
ADPX4ASS 15.10 x 12.25 x 3.18 384 x 311 x 81 Brushed stainless steel 12.00 305 10.00 254 14.25 362
ADPX4B 6.83 x 6.25 x 2.18 173 x 159 x 55 ANSI 61 paint 4.00 102 4.00 102 6.25 159
ADPX4BLG 6.83 x 6.25 x 2.18 173 x 159 x 55 RAL 7035 paint 4.00 102 4.00 102 6.25 159
ADPX4BSS 6.83 x 6.25 x 2.18 173 x 159 x 55 Brushed stainless steel 4.00 102 4.00 102 6.25 159
ADPX4C 12.96 x 18.25 x 2.68 329 x 484 x 68 ANSI 61 paint 10.00 254 16.00 406 12.25 311
ADPX4CLG 12.96 x 18.25 x 2.68 329 x 484 x 68 RAL 7035 paint 10.00 254 16.00 406 12.25 311
ADPX4CSS 12.96 x 18.25 x 2.68 329 x 484 x 68 Brushed stainless steel 10.00 254 16.00 406 12.25 311
CHS Controls AB
Florettgatan 33
SE-254 67 Helsingborg, Sweden
Tel +46 42 38 61 00, Fax +46 42 38 61 29
chs@chscontrols.se
www.chscontrols.se

1323
Accessories: Door Accessories
Data Pockets
PH (763) 422-2211 • FX (763) 422-2600 • homanonline.com
Subject to change without notice © 2011 Pentair Technical Products
CHS Controls AB
Florettgatan 33
SE-254 67 Helsingborg, Sweden
Tel +46 42 38 61 00, Fax +46 42 38 61 29
chs@chscontrols.se
www.chscontrols.se

1324
Accessories: Shelves, Keyboard Trays and Gland Plates
Folding Shelves
PH (763) 422-2211 • FX (763) 422-2600 • homanonline.com
Subject to change without notice © 2011 Pentair Technical Products
Shelves, Keybo ard Trays and Gla nd Plates
Folding Shelv es
Stainless Steel Folding Shelf
Supports instruments and test equipment used to install and
maintain electrical components in an enclosure. Also ideally suited
for supporting laptop computers, monitoring units and other
equipment used with programmable controllers. The shelf can be
installed on the inside or outside surface of larger Homan industrial
enclosures (except PROLINE®). Automatically locks in the horizontal
position when raised. When not in use, the shelf folds down and
projects only 1 in. (25 mm) from the mounting surface. Constructed
of 304 stainless steel with a brushed nish. Maintains UL/CSA Type 4,
4X and 12 rating when properly installed on a Homan enclosure.
Bulletin: A80
Catalog Number
Size AxB
in./mm
Maximum
Distributed
Load Rating (lb.)
Maximum
Distributed
Load Rating (kg)
ACSHELF1212SS 12.00 x 12.00
305 x 305
150 68
ACSHELF1818SS 18.00 x 18.00
457 x 457
150 68
ACSHELF2424SS 24.00 x 24.00
610 x 610
150 68
Large Folding Shelf
Supports instruments and test equipment used to install and
maintain electrical components in an enclosure. Also ideally suited
for supporting laptop computers, monitoring units and other
equipment used with programmable controllers. The shelf can be
installed on the inside or outside surface of larger Homan industrial
enclosures (except PROLINE®). Automatically locks in the horizontal
position when raised. When not in use, the shelf folds to 1.73 in. (44
mm) from the mounting surface. All parts are heavy gauge steel
and painted white. Maintains UL/CSA Type 4 and 12 when properly
intalled on a Homan enclosure.
Bulletin: A34Y, A80
Catalog Number
Size AxB
in./mm
Maximum
Distributed
Load Rating (lb.)
Maximum
Distributed
Load Rating (kg) Finish
AASHLF1218 18.00 x 12.00
457 x 305
150 68 White
AASHLF1818 18.00 x 18.00
457 x 457
150 68 White
AASHLF2424 24.00 x 24.00
610 x 610
150 68 White
Catalog numbers ACSHELF12 and ACSHELF18 have been obsoleted. Please use the
shelves above as replacements.
CHS Controls AB
Florettgatan 33
SE-254 67 Helsingborg, Sweden
Tel +46 42 38 61 00, Fax +46 42 38 61 29
chs@chscontrols.se
www.chscontrols.se

1325
Accessories: Shelves, Keyboard Trays and Gland Plates
Shelves for Open Frame Racks
PH (763) 422-2211 • FX (763) 422-2600 • homanonline.com
Subject to change without notice © 2011 Pentair Technical Products
Shelves for Ope n Frame Rack s
Double-Sided Solid Aluminum Shelf
Mounts on 19-in. open frame rack. Two shelves form double-sided
shelf. Uses 4U rack space. Made of 0.090-in. thick aluminum with
brushed nish.
Maximum load rating: 100 lb. (45.4 kg) per side, 200 lb. (90.7 kg) total
Bulletin: DACCY
Catalog Number
H x W x D
in./mm Fits Rack Includes Rack Units
ESHDA19 5.62 x 19.31 x 9.37
143 x 490 x 238
19 in. 2 shelves 4
Double-Sided, Solid Aluminum, Heavy Duty
Shelf
Mounts on open frame rack. Two shelves form double-sided shelf.
Uses 4U rack space. Made of 0.090-in. thick aluminum with brushed
nish.
Maximum Load Rating: 150 lb. (68.0 kg) per side, 300 lb. (136.1 kg)
total
Bulletin: DACCY
Catalog Number
H x W x D
in./mm Fits Rack Includes Rack Units
ESHDHDA19 6.37 x 19.31 x 10.00
162 x 490 x 254
19 in. 2 shelves 4
Single-Sided Solid Aluminum Shelf
Mounts in a cabinet or on a 19-in. open-frame rack and can be wall
mounted. Made of 0.090-in. thick aluminum with brushed nish.
Maximum load rating: 100 lb. (45.4 kg)
Bulletin: DACCY
Catalog Number
H x W x D
in./mm Fits Rack Rack Units
ESHA19 5.25 x 18.31 x 15.00
133 x 465 x 381
19 in. 3
Single-Sided Solid-Steel Shelf
Solid shelf mounts to either front or rear ange of open-frame rack.
Uses 3U of rack space. Steel with textured black nish.
Load rating: 150 lb. (68.0 kg)
Bulletin: DACCY
Catalog Number
H x W x D
in./mm Fits Rack Rack Units
ESH19S 4.85 x 19.00 x 10.50
123 x 483 x 267
19 in. 3
ESH23S 4.85 x 23.00 x 10.50
123 x 584 x 267
23 in. 3
CHS Controls AB
Florettgatan 33
SE-254 67 Helsingborg, Sweden
Tel +46 42 38 61 00, Fax +46 42 38 61 29
chs@chscontrols.se
www.chscontrols.se

1326
Accessories: Shelves, Keyboard Trays and Gland Plates
Shelves for Open Frame Racks
PH (763) 422-2211 • FX (763) 422-2600 • homanonline.com
Subject to change without notice © 2011 Pentair Technical Products
Single-Sided Steel Vented Shelf
Vented shelf mounts to either front or rear ange of open-frame rack.
Steel with textured black polyester powder paint nish.
Load rating: 150 lb. (68.0 kg)
Bulletin: DACCY
Catalog Number
H x W x D
in./mm Fits Rack Rack Units
ESH19V 4.85 x 19.00 x 10.50
123 x 483 x 267
19 in. 3
ESH23V 4.85 x 23.00 x 10.50
123 x 584 x 267
23 in. 3
Double-Sided Solid-Steel Shelf
Solid double-deep shelf mounts to both front and rear anges of
open frame rack. Steel with textured black polyester powder paint
nish.
Load rating: 300 lb. (136.1 kg)
Bulletin: DACCY
Catalog Number
H x W x D
in./mm Fits Rack Rack Units
ESHD19 4.85x 19.00 x 10.50
123 x 483 x 267
19 in. 3
ESHD23 4.85 x 23.00 x 10.50
123 x 584 x 267
23 in. 3
Double-Sided Steel Vented Shelf
Vented, double-deep shelf mounts to both front and rear anges of
open frame rack. Steel with textured black polyester powder paint
nish.
Load rating: 300 lb. (136.1 kg)
Bulletin: DACCY
Catalog Number
H x W x D
in./mm Fits Rack Rack Units
ESHDV19 4.85 x 19.00 x 10.50
123 x 483 x 267
19 in. 3
ESHDV23 4.85 x 23.00 x 10.50
123 x 584 x 267
23 in. 3
Center-Mount Steel Shelves
19-in. shelf mounts to the front of the rack. Ideal for supporting
monitors or computers. Designed to evenly distribute load across
the rack. Manufactured from 16 gauge steel. Black, low-gloss, light-
textured polyester powder paint nish on all surfaces.
Load rating: 100 lb. (45.4 kg)
Bulletin: DOFRC
Catalog Number
H x W x D
in./mm Style Rack Units
ECMS1918 3.50 x 19.00 x 18.00
89 x 483 x 457
Solid 2
ECMS1922 3.50 x 19.00 x 22.00
89 x 483 x 559
Solid 2
ECMSV1918 3.50 x 19.00 x 18.00
89 x 483 x 457
Vented 2
ECMSV1922 3.50 x 19.00 x 22.00
89 x 483 x 559
Vented 2
CHS Controls AB
Tel +46 42 38 61 00, Fax +46 42 38 61 29
chs@chscontrols.se www.chscontrols.se

1327
Accessories: Shelves, Keyboard Trays and Gland Plates
Shelves for Open Frame Racks
PH (763) 422-2211 • FX (763) 422-2600 • homanonline.com
Subject to change without notice © 2011 Pentair Technical Products
Rack-Mount Steel Shelf
19-in. Rack-Mount Shelf mounts to the front of the rack. Ideal for
holding non-19-in. rack-mount equipment. Available with or without
vents. Manufactured from 16 gauge steel. Black, low-gloss, lightly
textured nish on all surfaces.
Load rating: 100 lb. (45.4 kg)
Bulletin: DOFRC
Catalog Number
H x W x D
in./mm Style Rack Units
EMS1918 5.25 x 19.00 x 18.00
133 x 483 x 457
Solid 3
EMS1922 5.25 x 19.00 x 22.00
133 x 483 x 559
Solid 3
EMSV1918 5.25 x 19.00 x 18.00
133 x 483 x 457
Vented 3
EMSV1922 5.25 x 19.00 x 22.00
133 x 483 x 559
Vented 3
Adjustable Steel Vented Shelf
Vented shelf adjustable front to back in 25-mm increments. Shelf
mounts to either front or rear ange of open frame rack. Steel with
textured black polyester powder paint nish.
Load rating: 60 lb. (27.2 kg)
Bulletin: DACCY
Catalog Number
H x W x D
in./mm Fits Rack Rack Units
ESHVA19 3.50 x 16.93 x 15.75
89 x 430 x 400
19 in. 2
ESHVA23 3.50 x 19.93 x 15.75
89 x 506 x 400
23 in. 2
Pullout Keyboard Tray with Monitor Shelf
Mounts to the front and back surfaces of a standard 3-in. open frame
rack. Fits full-size keyboard. Includes mouse tray. Extends 10.5 in. (267
mm) beyond front of open frame rack. Keyboard tray slides out an
additional 7 in. (178 mm). Uses 4U rack space. 16 gauge steel with RAL
9005 black polyester powder paint nish.
Monitor shelf load rating: 100 lb. (45.4 kg)
Bulletin: DACCY
Catalog Number
H x W x D
in./mm Fits Rack Rack Units
E19SKBM 7.00 x 19.90 x 10.24
178 x 505 x 260
19 in. 4
Pull-Out Shelf for Mini Keyboard
Pull-Out Shelf for Mini Keyboard mounts either in a cabinet or on a
19-in. open-frame rack and ts a 16.25-in. (413-mm) wide keyboard.
When closed, all parts slide between rack angles. Keyboard tray slides
out 8.94 in. (227 mm). 16 gauge steel with RAL 9005 black polyester
powder paint nish.
Bulletin: DACCY
Catalog Number
H x W x D
in./mm Fits Rack Rack Units
P19KBSM 3.50 x 18.31 x 12.42
89 x 465 x 315
19 in. 2
CHS Controls AB
Tel +46 42 38 61 00, Fax +46 42 38 61 29
chs@chscontrols.se www.chscontrols.se

1328
Accessories: Shelves, Keyboard Trays and Gland Plates
Shelves for Racks and Cabinets
PH (763) 422-2211 • FX (763) 422-2600 • homanonline.com
Subject to change without notice © 2011 Pentair Technical Products
Shelves for Rac ks and Cabin ets
Pivoting Keyboard Shelf with Mouse Tray
Mounts either in a cabinet or on a 19-in. open-frame rack. Shelf pulls
out and pivots 90 degrees to access full-size keyboard. Shelf allows
keyboard to slide between standard rack angles and includes mouse
tray. 16 gauge steel with RAL 9005 black polyester powder paint
nish. Keyboard tray extends 9.75 in. (248 mm) beyond front of rack
angles or open-frame rack.
Bulletin: DACCY
Catalog Number
H x W x D
in./mm Fits Rack Rack Units
P19KBPVT 3.50 x 18.89 x 19.25
89 x 480 x 489
19 in. 2
Steel Keyboard/Monitor Shelf
Designed to accommodate a monitor and keyboard in an
ergonomically engineered design. Shelf mounts to front ange of
open-frame rack. Can mount in a cabinet if rack angles are adjusted
back for door clearance. Uses 3U of rack space. 19-in. and 23-in. rack
versions. Steel with textured black nish.
Load rating: 200 lb. (91 kg)
Bulletin: DACCY
Catalog Number
H x W x D
in./mm Fits Rack Rack Units
ESH19KBM 5.25 x 17.38 x 15.10
133 x 441 x 384
19 3
ESH23KBM 5.25 x 21.38 x 15.10
133 x 543 x 384
23 3
Pull-Out Shelf for Mini Keyboard
Pull-Out Shelf for Mini Keyboard mounts either in a cabinet or on a
19-in. open-frame rack and ts a 16.25-in. (413-mm) wide keyboard.
When closed, all parts slide between rack angles. Keyboard tray slides
out 8.94 in. (227 mm). 16 gauge steel with RAL 9005 black polyester
powder paint nish.
Bulletin: DACCY
Catalog Number
H x W x D
in./mm Fits Rack Rack Units
P19KBSM 3.50 x 18.31 x 12.42
89 x 465 x 315
19 in. 2
CHS Controls AB
Florettgatan 33
SE-254 67 Helsingborg, Sweden
Tel +46 42 38 61 00, Fax +46 42 38 61 29
chs@chscontrols.se
www.chscontrols.se

1329
Accessories: Shelves, Keyboard Trays and Gland Plates
Shelves for Racks and Cabinets
PH (763) 422-2211 • FX (763) 422-2600 • homanonline.com
Subject to change without notice © 2011 Pentair Technical Products
Tool-less Shelf
An easy-to-install tool-less vented 19-in. shelf. Mounts onto rack
angles that have EIA-spaced square holes (.375 in.). Shelf slides open
and provides a variable-sized, continuous surface for equipment.
Back of shelf has oval cutouts for power and data cables. Accessory
hole patterns at back of shelf t small and large D-rings to help
manage cable. Made of steel with a 150 lb. (68 kg) static load rating.
Available with RAL 9005 black or RAL 7035 gray polyester powder
coat nish.
Bulletin: DACCY
Catalog Number Description Finish
Minimum
Depth
mm/in.
Maximum
Depth
mm/in.
D19FVT69B Shelf, vented, 19 in. tool-less Black 495
19.50
851
33.50
D19FVT69G Shelf, vented, 19 in. tool-less Gray 495
19.50
851
33.50
D19FVT912B Shelf, vented, 19 in. tool-less Black 792
31.20
1151
45.30
D19FVT912G Shelf, vented, 19 in. tool-less Gray 792
31.20
1151
45.30
Minimum and maximum depth measured from rack angle to rack angle.
Rack-Mount Adjustable Shelf
Mounts to front surface of front
and back rack angles. Shelf is made
of painted 14 gauge steel and the
adjustable support brackets are clear-
plated 12 gauge steel. Adjustable
to t multiple-depth enclosures or
rack angle placement. Both solid and
vented models available. Fits 19- or
23-in. rack spacing. Requires only
1U of rack space. Shelf has RAL 7035
light-gray textured or RAL 9005 black
textured polyester powder paint
nish.
Load rating: 150 lb. (68 kg)
Bulletin: DACCY
Catalog Number Type Size Finish L x W (in.) L x W (mm) D max. (in.) D max. (mm)
Fits Enclosure
Depth Up To (in.)
Fits Enclosure
Depth Up To (mm)
P19SH68 Solid 19 in. Gray 19.68 x 17.32 500 x 440 30.71 780 31.50 800
P19SH68B Solid 19 in. Black 19.68 x 17.32 500 x 440 30.71 780 31.50 800
P19VSH68B Vented 19 in. Black 19.68 x 17.32 500 x 440 30.71 780 31.50 800
P19SH810 Solid 19 in. Gray 27.56 x 17.32 700 x 440 38.58 980 39.37 1000
P19SH810B Solid 19 in. Black 27.56 x 17.32 700 x 440 38.58 980 39.37 1000
P19VSH810B Vented 19 in. Black 27.56 x 17.32 700 x 440 38.58 980 39.37 1000
P23SH68B Solid 23 in. Black 19.68 x 21.32 500 x 542 30.71 780 31.50 800
P23VSH68B Vented 23 in. Black 19.68 x 21.32 500 x 542 30.71 780 31.50 800
P23SH810B Solid 23 in. Black 27.56 x 21.32 700 x 542 38.58 980 39.37 1000
P23VSH810B Vented 23 in. Black 27.56 x 21.32 700 x 542 38.58 980 39.37 1000
CHS Controls AB
Florettgatan 33
SE-254 67 Helsingborg, Sweden
Tel +46 42 38 61 00, Fax +46 42 38 61 29
chs@chscontrols.se
www.chscontrols.se

1330
Accessories: Shelves, Keyboard Trays and Gland Plates
Shelves for Racks and Cabinets
PH (763) 422-2211 • FX (763) 422-2600 • homanonline.com
Subject to change without notice © 2011 Pentair Technical Products
Single-Sided Shelf
Mounts to 19-in. rack angles to house
voice/data networking equipment.
RAL 9005 black nish.
Load rating: 75 lb. (34 kg)
Bulletin: DACCY
Catalog Number H x W x D (in.) H x W x D (mm) Style Rack Units
ESH198 3.74 x 19.00 x 8.00 95 x 483 x 203 Solid 2
ESH1915 3.74 x 19.00 x 15.00 95 x 483 x 381 Solid 2
ESH1915V 3.74 x 19.00 x 15.00 95 x 483 x 381 Vented 2
ESH1917 3.74 x 19.00 x 17.00 95 x 483 x 432 Solid 2
Sliding Equipment Shelf
Steel Sliding Equipment Shelf mounts to front surface of front and
back rack angles. Models t 19- or 23-in. rack spacing. Adjusts to t
multiple-depth enclosures and rack angle placements. Shelf can
be used on 2-post rack or cabinet with front rack angles only by
reversing support bracket. Optional cable manager arm available. 14
gauge steel with 12 gauge supports with RAL 9005 black polyester
powder paint nish. Load rating: 150 lb. (68.0 kg) with four corner
mounting; 75 lb. (34.0 kg) with two-post or front-rack-angle cabinet
mounting.
Optional Cable Manager Arm is recommended to help control cable
movement as shelf slides in and out.
Bulletin: DACCY
Catalog Number D (in.) D (mm) L (in.) L (mm) J (in.) J (mm)
Shelf
Pullout
(in.)
Shelf
Pullout
(mm)
Fits
Rack
Rack
Units
P19SHP68B 37.40 950 16.72 425 16.20 412 17.00 432 19 in. 2
P19SHP810B 41.30 1050 24.59 625 16.20 412 19.00 483 19 in. 2
P23SHP68B 37.40 950 16.72 425 20.20 513 17.00 432 23 in. 2
P23SHP810B 41.30 1050 24.59 625 20.20 513 19.00 483 23 in. 2
Cable Manager Arm for Sliding Equipment
Shelf
Cable Manager Arm mounts to back of sliding equipment shelf on
right or left side. Controls cable movement as shelf slides in and out.
14 gauge steel with RAL 9005 black polyester powder paint nish.
Bulletin: DACCY
Catalog Number Description Use With
PHCB Cable Manager Arm Sliding Equipment Shelf
CHS Controls AB
Florettgatan 33
SE-254 67 Helsingborg, Sweden
Tel +46 42 38 61 00, Fax +46 42 38 61 29
chs@chscontrols.se
www.chscontrols.se

1331
Accessories: Shelves, Keyboard Trays and Gland Plates
Shelves for Racks and Cabinets
PH (763) 422-2211 • FX (763) 422-2600 • homanonline.com
Subject to change without notice © 2011 Pentair Technical Products
Keyboard Compartment for 19-in. Racks
Provides a convenient way to
incorporate a keyboard with
other 19-in. rack-mounted
equipment. Uses 2 RU of space.
Made of light-weight aluminum
with brushed nish. Accommodates
keyboard up to 16.50-in. (419-mm)
wide. Mounting hardware included.
Bulletin: DACCY
Catalog Number Fits rack width Rack Units
A19KBC2B 19 2
Rack-Angle Mounted Drawer
Steel drawer for 19-in. rack-angle mounting mounts to the front
surface of the rack angles. Integral steel box contains the drawer and
protects surrounding internal equipment. Extends 13 in. (330 mm) on
ball bearing slides. Front includes handle and key lock. Finish is RAL
7035 textured light-gray polyester powder paint. Mounting hardware
is included.
Bulletin: P20
Catalog Number H (mm) H (in.)
Fits Rack
Width
Rack
Units
P19DR1US 43 1.69 19 in. 1
P19DR2US 88 3.47 19 in. 2
P19DR3US 132 5.20 19 in. 3
Writing Surface for Rack-Angle-Mounted Drawer
Steel cover mounts on top of the
drawer and serves as a writing
surface and drawer cover. Finish
is RAL 7035 light-gray textured
polyester powder paint. Illustration
and one photo show writing surface
mounted on drawer. Order drawer
separately.
Bulletin: P20
Catalog Number Description Fits
P19WS Steel writing surface and cover Drawer (order separately)
CHS Controls AB
Florettgatan 33
SE-254 67 Helsingborg, Sweden
Tel +46 42 38 61 00, Fax +46 42 38 61 29
chs@chscontrols.se
www.chscontrols.se

1332
Accessories: Shelves, Keyboard Trays and Gland Plates
Shelves for Racks and Cabinets
PH (763) 422-2211 • FX (763) 422-2600 • homanonline.com
Subject to change without notice © 2011 Pentair Technical Products
19-in. Fixed Shelf
14 gauge steel xed shelf has large ventilation slots in shelf surface.
Mounts between two pair of rack mounting angles that have
accessory mounting legs. Shelves have RAL 7035 light-gray polyester
powder paint nish. Plated mounting hardware is furnished.
Bulletin: P20
Catalog Number D (in.) D (mm) E (in.) E (mm) F (in.) F (mm) Fits Rack Width
A19SH5 16.06 408 10.46 266 13.46 342 19 (in.)
A19SH6 20.00 508 14.40 366 17.40 442 19 (in.)
A19SH8 27.87 708 22.27 566 25.27 642 19 (in.)
Pull-Out Shelves
Pull-Out Shelves extend 17 in. (432 mm) on ball-bearing slides. 16
gauge pull-out shelf mounts to uprights in 19-in. electronic rack
or 19-in. mini-rack using pull-out shelf bracket (EPSBKT) and has
light-gray powder paint nish. Two screws captivate shelf to slides.
14 gauge steel pull-out shelf mounts between two pair of rack-
mounting angles that have accessory mounting legs and has white
nish. Plated mounting hardware is furnished.
Bulletin: DEC1, P20
Catalog Number Description Fits
A19SHP6 Pull-out shelf 19-in. rack angles
DL29SHP Pull-out shelf 24-in. rack
EPSBKT Pull-out shelf bracket
Fixed Shelf
14 gauge steel xed shelf has a large
slot in rear of shelf surface for wire
management. Mounts between
two pair of rack mounting angles
that have accessory mounting legs.
Shelves are white. Plated mounting
hardware is furnished.
Bulletin: P20
Catalog Number Fits Rack Width
DL29SH 24 (in.)
CHS Controls AB
Florettgatan 33
SE-254 67 Helsingborg, Sweden
Tel +46 42 38 61 00, Fax +46 42 38 61 29
chs@chscontrols.se
www.chscontrols.se

1333
Accessories: Shelves, Keyboard Trays and Gland Plates
Drawers
PH (763) 422-2211 • FX (763) 422-2600 • homanonline.com
Subject to change without notice © 2011 Pentair Technical Products
Drawers
Drawers
16 gauge steel drawer extends 17.00 in. (432 mm) on ball bearing
slides. Drawer has polyester powder paint nish and recessed black
pull handle. Drawers mount between two pair of rack-mounting
angles that have accessory mounting legs. Includes provision for
attaching a writing surface. Plated steel mounting hardware is
furnished.
Bulletin: P20, X20
Catalog Number
H
in./mm Color Fits Rack Width
A19DR2U 3.47
88
RAL 7035 Light Gray 19 in.
A19DR4U 6.97
177
RAL 7035 Light Gray 19 in.
Enclosure must be at least 24-in. (600-mm) deep.
CONCEPT® Keyboard Box Keyboard box is designed to t on an outside surface of an enclosure
to provide a self-contained external Type 4 housing for a keyboard.
The box attaches to the enclosure surface with 4 bolts. A large hole
and rubber plug are provided for keyboard cord and plug. The
hinged cover is supported with exible cables in the open position.
A left and a right mouse tray slides out from under the keyboard
mounting surface. VELCRO® strips with pressure-sensitive adhesive
are supplied to attach a keyboard. An internal mouse storage pracket
is provided. The box and cover are 16 gauge steel with ANSI 61 gray
polyester powder paint nish. Cover latches with a single quarterturn
slotted latch. Optional CONCEPT latches also t.
VELCRO is a trademark of Velcro Industries B.V.
Bulletin: A80
Catalog Number AxBxC in./mm
Max. Keyboard Size
W x D x H
in./mm
CKBC24 10.00 x 23.30 x 4.79
254 x 592 x 122
20.20 x 8.00 x 2.34
513 x 203 x 59
CHS Controls AB
Florettgatan 33
SE-254 67 Helsingborg, Sweden
Tel +46 42 38 61 00, Fax +46 42 38 61 29
chs@chscontrols.se
www.chscontrols.se

1334
Accessories: Shelves, Keyboard Trays and Gland Plates
Gland Plates
PH (763) 422-2211 • FX (763) 422-2600 • homanonline.com
Subject to change without notice © 2011 Pentair Technical Products
Gland Plates
16 Gauge Gland Plate
Constructed of 16 gauge steel. Gland plates will maintain UL/CSA
Type 12 integrity while providing a removable cable egress and
entry plate. Easily installed by cutting a rectangular opening in the
enclosure. Finish is ANSI 61 gray polyester powder paint.
Bulletin: A80
Catalog Number
K
in./mm
L
in./mm
DLGP610 9.00
229
9.94
252
DLGP618 17.00
432
17.94
457
12 Gauge Gland Plate Constructed of 12 gauge steel and designed for use with 10 gauge
and 12 gauge enclosures. Provides a removable cable egress and
entry plate while maintaining UL/NEMA integrity of the enclosure.
Gasket with pressure-sensitive adhesive is included to be applied
after desired modications are completed. Finish is ANSI 61 gray
polyester powder paint. Maintains UL/NEMA Type 4 and Type 12 if
properly installed in a Homan enclosure.
Bulletin: A34Y
Catalog Number
Size
in./mm
Opening Size
in./mm
AGP618 6.50 x 18.50
165 x 470
4.00 x 16.00
102 x 406
AGP1218 12.50 x 18.50
318 x 470
10.00 x 16.00
254 x 406
AGP1618 16.50 x 18.50
419 x 470
14.00 x 16.00
356 x 406
CHS Controls AB
Florettgatan 33
SE-254 67 Helsingborg, Sweden
Tel +46 42 38 61 00, Fax +46 42 38 61 29
chs@chscontrols.se
www.chscontrols.se

1335
Accessories: Shelves, Keyboard Trays and Gland Plates
Gland Plates
PH (763) 422-2211 • FX (763) 422-2600 • homanonline.com
Subject to change without notice © 2011 Pentair Technical Products
Notes
CHS Controls AB
Florettgatan 33
SE-254 67 Helsingborg, Sweden
Tel +46 42 38 61 00, Fax +46 42 38 61 29
chs@chscontrols.se
www.chscontrols.se

1336
Accessories: Locks, Lockouts, Latches, Handles and Clamps
Locks
PH (763) 422-2211 • FX (763) 422-2600 • homanonline.com
Subject to change without notice © 2011 Pentair Technical Products
Locks, Locko uts, Latch es, Handl es and Clamp s
Locks
Lock Kit for Clamp Cover Junction Boxes
Designed for eld installation in standard clamp-cover junction
boxes. Includes complete installation instructions. One hole must be
drilled or punched in the cover to receive the cylinder lock. Punches
for Homan locks and latches are available from Greenlee Punches.
For more information on Greenlee punches, go to http://www.
greenlee.textron.com/
Bulletin: A80
Catalog Number L (in.) L (mm)
ACLJIC 1.25 32
Lock Kit for Type 3R and 12 Enclosures
Designed for eld installation in standard one-door Type 3R and 12
enclosures. Includes complete installation instructions. One hole
must be drilled or punched in the door to receive the cylinder lock.
Bulletin: A80
Catalog Number
L, for NEMA 12 Enclosure
in./mm
L, for Medium 3R Hinged-Cover Enclosure
in./mm
ACLSN12 1.69
43
2.25
57
Padlock Kit for Junction Boxes
Designed for eld installation on
standard LP, CH and CHNF junction
boxes. Maintains water-tight and
dust-tight seal. To install simply
drill two holes in the cover and two
holes in the body. Includes complete
instructions. Padlock Kit is plated
steel or Type 316 stainless steel.
Bulletin: A80
Catalog Number Description
APLKJIC Plated steel
APLKJIC6SS Type 316 stainless steel
Replacement Keys
Fits PROLINE® Network Cabinet and
Networking Wall-Mount Cabinet.
Bulletin: DACCY
Catalog Number Key Code Includes Use with
E2233KEY 2233 2 Keys PROLINE®, Net Series, D-BOX™ , PC Cabinet, SOHO
E333KEY 333 2 Keys ACCESSPLUS® II, L-BOX®
CHS Controls AB
Florettgatan 33
SE-254 67 Helsingborg, Sweden
Tel +46 42 38 61 00, Fax +46 42 38 61 29
chs@chscontrols.se
www.chscontrols.se

1337
Accessories: Locks, Lockouts, Latches, Handles and Clamps
Lockouts
PH (763) 422-2211 • FX (763) 422-2600 • homanonline.com
Subject to change without notice © 2011 Pentair Technical Products
Lockouts
Safety Lockouts
Provide a means of using multiple
padlocks on a secured power source.
Catalog number ASL6C includes
a 10.00-in. (254-mm) plated steel
chain. Manufactured from 10 gauge
steel with six station holes. Red nish.
Overall length is 5.06 in. (128 mm)
and padlock holes are .38-in. (10-mm)
in diameter.
Bulletin: A80
Catalog Number Description
ASL6 Without chain
ASL6C With chain
Dual-Access Safety Lockouts
Provide a means of using two
padlocks on a secured power source.
Either padlock can be removed
enabling power to be interrupted
and enclosure accessed. Catalog
number ASLDAC includes a 10.00-
in. (254-mm) plated steel chain.
Lockouts are manufactured from
10 gauge steel and nished in red.
Padlock holes are .38-in. (10-mm) in
diameter. Padlock is not included.
Bulletin: A80
Catalog Number Description
ASLDA Without chain
ASLDAC With chain
CHS Controls AB
Florettgatan 33
SE-254 67 Helsingborg, Sweden
Tel +46 42 38 61 00, Fax +46 42 38 61 29
chs@chscontrols.se
www.chscontrols.se

1338
Accessories: Locks, Lockouts, Latches, Handles and Clamps
Latches
PH (763) 422-2211 • FX (763) 422-2600 • homanonline.com
Subject to change without notice © 2011 Pentair Technical Products
Latches
T-Handle Latch and Keyed Cylinder Lock Kits
To install, simply remove the
standard slotted latch and insert the
kit. Complete installation instructions
are furnished. Catalog number AL7A
includes a Type L7 T handle and all
hardware. Catalog number AL12AR
includes a Type L12 cylinder lock,
cam and all hardware. Latch and lock
t Type 1 enclosures and hinged-
cover pull boxes.
Bulletin: A80
Catalog Number Description
AL7A T handle latch kit
AL12AR Cylinder lock kit
Latch Kit for One-Door Type 12 Enclosures
Designed for eld installation on most standard one-door Type
12 enclosures. These latch kits will not t Homan disconnect,
CONCEPT® or PROLINE® enclosures. Each kit includes a handle, latch,
latch rods, adjustable rod guides and all hardware. The latch rods can
be adjusted to maintain the proper gasket compression by relocating
the pins in the rod guides. When the pin is removed, the latch rod can
also be removed. These kits are available with a key locking handle, a
non-locking handle or a padlocking handle. All openings through the
door are gasketed to assure a complete seal. Ends of latch rods have
rollers for easier door closing.
Bulletin: A80
Catalog
Number
Handle
Type Opens Description
AL36A Padlock Either Clockwise or
Counterclockwise
1-point Latch kit
AL2A Keylock Clockwise 1-point Latch kit
AL2ACCW Keylock Counterclockwise 1-point Latch kit
AL3A Non-
Locking
Clockwise 1-point Latch kit
AL36BR Padlock Either Clockwise or
Counterclockwise
3-point Latch Kit where A is 16, 20, 24
or 30 in.
AL2BR Keylock Clockwise 3-point Latch Kit where A is 16, 20, 24
or 30 in.
AL2BCCW Keylock Counterclockwise 3-point Latch Kit where A is 16, 20, 24
or 30 in.
AL3BR Non-
Locking
Clockwise 3-point Latch Kit where A is 16, 20, 24
or 30 in.
AL36CR Padlock Either Clockwise or
Counterclockwise
3-point Latch kit where A is 36, 42 or 48 in.
AL2CR Keylock Clockwise 3-point Latch kit where A is 36, 42 or 48 in.
AL2CCCW Keylock Counterclockwise 3-point Latch kit where A is 36, 42 or 48 in.
AL3CR Non-
Locking
Clockwise 3-point Latch kit where A is 36, 42 or 48 in.
AL36DR Padlock Either Clockwise or
Counterclockwise
3-point Latch kit where A is 60 or 72 in.
AL2DR Keylock Clockwise 3-point Latch kit where A is 60 or 72 in.
AL2DCCW Keylock Counterclockwise 3-point Latch kit where A is 60 or 72 in.
AL3DR Non-
Locking
Clockwise 3-point Latch kit where A is 60 or 72 in.
See price list for factory installation charges. A is enclosure height.
Latch Kits for Type 4 and 12 Enclosures Fits Type 4 and 12 enclosures which have external screw clamps.
Requires only a quarter-turn (90 degrees) to open or close. An internal
O-ring and external gasket assure a water-tight and dust-tight seal.
Installation requires a hole punched or drilled in the door for each
latch. Complete instructions are furnished. A square or triangular key
is required for tamper-resistant latches. Latch is die-cast zinc with
chrome nish.
Bulletin: A80
Catalog Number Description
AL31 Slotted insert
AL32 7-mm square insert
AL32Y Key for AL32
AL35 7-mm triangle insert
AL35Y Key for AL 35
Toggle Latch for Type 4 and 4X Floor-Mount and Free-Stand Enclosures
Provides quick access to Type 4
and 4X oor-mount and free-stand
enclosures with clamps. The 3/8-16
threaded, stainless steel toggle
latches replace the standard stainless
steel bolts. Operation of the toggle
releases the door clamp so the
door can be opened without tools.
Two Type 316 stainless steel toggle
assemblies included.
Bulletin: A80
Catalog Number Description
AFT44XSS 2 toggle latches
CHS Controls AB
Florettgatan 33
SE-254 67 Helsingborg, Sweden
Tel +46 42 38 61 00, Fax +46 42 38 61 29
chs@chscontrols.se
www.chscontrols.se

1339
Accessories: Locks, Lockouts, Latches, Handles and Clamps
Handles
PH (763) 422-2211 • FX (763) 422-2600 • homanonline.com
Subject to change without notice © 2011 Pentair Technical Products
Handles
POWERGLIDE® Handles
Easy-to-install medium-size
POWERGLIDE Handles t into existing
handle holes. They are available in
clockwise and counter-clockwise
non-defeater models and a clockwise
defeater model. The clockwise
defeater model includes door
hardware for Bulletin A25 enclosures.
Bulletin: A80
Catalog Number Description
AL55CW Medium POWERGLIDE Handle - Clockwise Opening
AL55CCW Medium POWERGLIDE Handle - Counter-Clockwise Opening
AL55CWD Medium POWERGLIDE Handle - Clockwise Opening with Defeater and Door Hardware
Handle Kit
Non-metallic handle for small
enclosures. Includes four rubber
bumpers that mount on back of
enclosure to protect exterior nish.
All mounting hardware and complete
installation instructions are provided.
Bulletin: A80
Catalog Number Description
DHDLK Handle kit
Handles Attach to sides of enclosure to provide maximum operator control
when using a pendant arm, swivel or swivel tilt.
Bulletin: C2, CC1, CC2, DEC1, P1
Catalog Number Description Fits
ERCFH3U 132 mm Desktop case
ERCFH4U 177 mm Desktop case
ERCFH6U 266 mm Desktop case
PUHKA 248 mm PROLINE sloped fronts
PUHK 9.75 in. PROLINE sloped fronts
POWERGLIDE® Defeater Handle Kit
This clockwise defeater model
includes door hardware for Bulletin
A25 enclosures.
Bulletin: A80
Catalog Number Description
AL55CWD Medium POWERGLIDE Handle - Clockwise opening with defeater and door hardware
CHS Controls AB
Florettgatan 33
SE-254 67 Helsingborg, Sweden
Tel +46 42 38 61 00, Fax +46 42 38 61 29
chs@chscontrols.se
www.chscontrols.se

1340
Accessories: Locks, Lockouts, Latches, Handles and Clamps
Clamps
PH (763) 422-2211 • FX (763) 422-2600 • homanonline.com
Subject to change without notice © 2011 Pentair Technical Products
Clamps
Fast-Operating Clamp-Cover Junction Box Clamp
Provides quick access to enclosure
or wireway interiors. Installs on
standard clamp bracket used on
Homan junction boxes, Type
12 trough and wireway, Type
4X wireway and similar custom
enclosures. Clamps are available in
plated steel or stainless steel.
Bulletin: A80
Catalog Number Description
AL23 Plated steel clamp
AL23SS Stainless steel clamp
Fast-Operating Clamp Assembly
Provides quick access to enclosures
which have screw clamps. Install on
clamp brackets used on single-door
Type 4, 4X, 12 and 13 enclosures and
similar custom order enclosures. The
entire clamp assembly is Type 316
stainless steel.
Bulletin: A80
Catalog Number Qty.
AFC412SS 2
Clamp Kits
These kits provide replacement
clamps for clamp-cover junction
boxes and wall-mount enclosures.
Each kit contains two clamps and all
mounting hardware.
Bulletin: A80
Catalog Number Material Use with
AL15 Mild Steel A12 enclosures
AL16 Stainless Steel A4, A4S enclosures
AL17 Mild Steel A51 junction boxes
AL18 Stainless Steel A51S junction boxes
Clamp Block Kit
Used on oor-mount and free-stand
Type 4X stainless steel enclosures
with clamps. Kit includes two sets of
screws, two Type 316L clamp blocks
and mounting hardware.
Bulletin: A50Y
Catalog Number Description
ACBK6SS 2 clamp blocks and screw sets
CHS Controls AB
Florettgatan 33
SE-254 67 Helsingborg, Sweden
Tel +46 42 38 61 00, Fax +46 42 38 61 29
chs@chscontrols.se
www.chscontrols.se

1341
Accessories: Drip Shields
Drip Shields
PH (763) 422-2211 • FX (763) 422-2600 • homanonline.com
Subject to change without notice © 2011 Pentair Technical Products
Drip Shields
Drip Shields
Drip Shield Kit for Type 12 Enclosures Protects door hardware from dripping water and settling dust.
Attaches quickly and easily to the enclosure with stainless steel
screws and sealing washers (hardware is furnished). Stainless
steel hinge pin and stainless steel door clamping assemblies are
furnished to replace the standard hinge pin and door clamping
assemblies. A tube of sealing compound is also supplied with each
kit. Manufactured from 14 gauge steel with an ANSI 61 gray polyester
powder paint nish over pretreated surfaces.
Bulletin: A80
Catalog Number For
Fits Enclosure
Size B (in.)
Fits Enclosure
Size B (mm)
ADK12A Single-Door Wall-Mount Enclosures 12.00 305
ADK16A Single-Door Wall-Mount Enclosures 16.00 406
ADK20A Single-Door Wall-Mount Enclosures 20.00 508
ADK24A Single-Door Wall-Mount Enclosures 24.00 610
ADK30A Single-Door Wall-Mount Enclosures 30.00 762
ADK36A Single-Door Wall-Mount Enclosures 36.00 914
ADK42A Two-Door Floor-Mount Enclosures 42.00 1067
ADK48A Two-Door Floor-Mount Enclosures 48.00 1219
ADK60A Two-Door Floor-Mount Enclosures 60.00 1524
ADK72A Two-Door Floor-Mount Enclosures 72.00 1829
Two-Door Drip Shield kits are not designed for use on 48.00-in. (1219-mm) wide and 60.00-in. (1524-mm)
wide Two-Door Type 12 Wall-Mount Enclosures.
Stainless Steel Drip Shield Kit for Type 4 and
4X Wall-Mount Enclosures
Easily installed on Type 4 and 4X wall-mount enclosures (excluding
quick-release latch models). Protects door from dripping water
and settling dust. Attaches quickly and easily to the enclosure with
stainless steel screws and sealing washers (furnished). A tube of
sealing compound is supplied with each kit. Manufactured from 14
gauge Type 316 stainless steel. Kits can be special ordered for other
Homan enclosures. Consult factory for more information. Product
maintains UL/CSA Type 4, 4X and 12 rating when properly installed on
a Homan enclosure.
Bulletin: A4SY
Catalog Number Fits Enclosure Size B (in.) Fits Enclosure Size B (mm)
ADK12SS6 12.00 305
ADK16SS6 16.00 406
ADK20SS6 20.00 508
ADK24SS6 24.00 610
ADK30SS6 30.00 762
ADK36SS6 36.00 914
CHS Controls AB
Florettgatan 33
SE-254 67 Helsingborg, Sweden
Tel +46 42 38 61 00, Fax +46 42 38 61 29
chs@chscontrols.se
www.chscontrols.se

1342
Accessories: Hole Seals
Hole Seals
PH (763) 422-2211 • FX (763) 422-2600 • homanonline.com
Subject to change without notice © 2011 Pentair Technical Products
Hole Seals
Hole Seals
HOL-SEALERS® Hole Seals
Industry Standards
Steel Hole Seals
UL 508A Component Recognized; Type 3R, 4, 12, 13; File No.
E61997
CSA File No. 42186; Type 3R, 4, 12, 13
NEMA/EEMAC Type 3R, 4, 12, 13
IEC 60529, IP66
Stainless Steel Hole Seals
UL 508A Component Recognized; Type 3R, 4, 4X, 12, 13; File No.
E61997
CSA File No. 42186; Type 3R, 4, 4X, 12, 13
NEMA/EEMAC Type 3R, 4, 4X, 12, 13
IEC 60529, IP66
Application
Seal extra pushbutton holes, conduit openings and knockout
openings against dust, dirt, oil and water with Homan HOL-
SEALERS®. Seals will cover any size or shape of hole from .19-in.
diameter to maximum diameter shown in table. Can be used on
enclosure walls up to .31-in. (8-mm) thick.
Features
• Available in multiple colors and sizes
• Oil-resistant gasket provided
Specications
Steel Models
• 16 gauge galvanized steel backplate
• Plated stud (10-32x5/8) and wing nut
Stainless Steel Models
• 16 gauge stainless steel backplate
• Seal, backplate, stud (10-24x5/8) and wing nut are 300 series
stainless steel
Finish
Steel seals have polyester powder paint nish over galvanized front
surface.
Stainless steel seals have polished front surface.
Bulletin: A80HS
CHS Controls AB
Florettgatan 33
SE-254 67 Helsingborg, Sweden
Tel +46 42 38 61 00, Fax +46 42 38 61 29
chs@chscontrols.se
www.chscontrols.se

1343
Accessories: Hole Seals
Hole Seals
PH (763) 422-2211 • FX (763) 422-2600 • homanonline.com
Subject to change without notice © 2011 Pentair Technical Products
Standard Product
Catalog Number Material Finish/Color For
Maximum Hole Diameter
in./mm
Hol-Sealer Diameter
in./mm
AS056M Steel ANSI 61 gray Micro 0.56
14
0.80
20
AS056MSS Stainless Steel Stainless Steel Micro 0.56
14
0.80
20
AS056CB Steel Chrysler beige Micro 0.56
14
0.80
20
AS056MFB Steel Ford brown Micro 0.56
14
0.80
20
AS056MLG Steel Light gray Micro 0.56
14
0.80
20
ASPBG Steel ANSI 61 gray 22.5-mm pushbutton holes 0.88
22
1.22
31
ASPBGSS Stainless Steel Stainless Steel 22.5-mm pushbutton holes 0.88
22
1.22
31
AS050 Steel ANSI 61 gray 1/2-in. conduit holes 0.88
22
1.38
35
AS050LG Steel Light gray 1/2-in. conduit holes 0.88
22
1.38
35
AS050SS Stainless Steel Stainless Steel 1/2-in. conduit holes 0.88
22
1.38
35
AS075 Steel ANSI 61 gray 3/4-in. conduit holes 1.06
27
1.56
40
AS075SS Stainless Steel Stainless Steel 3/4-in. conduit holes 1.06
27
1.56
40
AS075LG Steel Light gray 3/4-in. conduit holes 1.06
27
1.56
40
ASPB Steel ANSI 61 gray 30.5-mm pushbutton holes 1.25
32
1.75
44
ASPBSS Stainless Steel Stainless Steel 30.5-mm pushbutton holes 1.25
32
1.75
44
ASPBLG Steel Light gray 30.5-mm pushbutton holes 1.25
32
1.75
44
AS100 Steel ANSI 61 gray 1-in. conduit holes 1.38
35
1.88
48
AS100SS Stainless Steel Stainless Steel 1-in. conduit holes 1.38
35
1.88
48
AS100LG Steel Light gray 1-in. conduit holes 1.38
35
1.88
48
AS125 Steel ANSI 61 gray 1 1/4-in. conduit holes 1.69
43
2.19
56
AS125SS Stainless Steel Stainless Steel 1 1/4-in. conduit holes 1.69
43
2.19
56
AS125LG Steel Light gray 1 1/4-in. conduit holes 1.69
43
2.19
56
AS150 Steel ANSI 61 gray 1 1/2-in. conduit holes 2.00
51
2.50
64
AS150SS Stainless Steel Stainless Steel 1 1/2-in. conduit holes 2.00
51
2.50
64
AS150LG Steel Light gray 1 1/2-in. conduit holes 2.00
51
2.50
64
AS200 Steel ANSI 61 gray 2-in. conduit holes 2.50
64
3.00
76
AS200SS Stainless Steel Stainless Steel 2-in. conduit holes 2.50
64
3.00
76
AS200LG Steel Light gray 2-in. conduit holes 2.50
64
3.00
76
AS250 Steel ANSI 61 gray 2 1/2-in. conduit holes 3.00
76
3.50
89
AS250SS Stainless Steel Stainless Steel 2 1/2-in. conduit 3.00
76
3.50
89
AS300 Steel ANSI 61 gray 3-in. conduit holes 3.62
92
4.12
105
AS300SS Stainless Steel Stainless Steel 3-in. conduit holes 3.62
92
4.12
105
AS350 Steel ANSI 61 gray 3 1/2-in. conduit holes 4.12
105
4.62
117
AS350SS Stainless Steel Stainless Steel 3 1/2-in. conduit holes 4.12
105
4.62
117
AS400 Steel ANSI 61 gray 4-in. conduit holes 4.62
117
5.12
130
AS400SS Stainless Steel Stainless Steel 4-in. conduit holes 4.62
117
5.12
130
CHS Controls AB
Tel +46 42 38 61 00, Fax +46 42 38 61 29
chs@chscontrols.se www.chscontrols.se

1344
Accessories: Hole Seals
Hole Seals
PH (763) 422-2211 • FX (763) 422-2600 • homanonline.com
Subject to change without notice © 2011 Pentair Technical Products
HOL-SEALERS® Non-Metallic Hole Seals
Industry Standards
UL 508A Component Recognized; Type 3R, 4, 4X, 12, 13; File No.
E61997
CSA File No. 42186: Type 3R, 4, 4X, 12, 13
NEMA/EEMAC Type 3R, 4, 4X, 12, 13
IEC 60529, IP66
Application
Designed for use in corrosive environments to seal extra pushbutton
holes, conduit openings and knockout openings against dust, dirt,
oil and water. These hole seals are suitable for sealing enclosure
openings in industries such as petroleum and chemical processing,
wastewater processing, pulp and paper, outdoor monitoring and any
other industry exposed to harsh environments.
Innovative 3-in-1 self-centering design
• Thread self-centers on one hole size
• Nut orientation “A” self-centers on a second hole size (see Nut
Orientation drawing)
• Nut orientation “B” self-centers on a third hole size
Features
• Innovative 3-in-1 self-centering design reduces inventory
requirements; 4 models cover 12 common industry cutouts
ranging from 1/2 in. to 4 in.
• Non-metallic construction provides superior corrosion resistance
for reliability in harsh environments
• UV stabilized; ideal for direct sunlight (avoids berbloom
associated with berglass)
• Chemically resistant to a broad range of chemicals
• Durable and impact resistant; resists cracking
• Sold in quantities of 2 per catalog number
• Cost-eective alternative to stainless steel
• Polyester material has a UL 94 rating of 5VA
• Easy to install; no tools required
Specications
• Thread and nut are constructed of non-glass-lled polyester
• Oil-resistant gasket
Finish
RAL 7035 light-gray textured nish
Bulletin: A80HS
Standard Product Non-Metallic Hole Seals
Catalog Number AxBxC in./mm Qty.
D
in./mm
E
in./mm
F
in./mm
Max. Hole
Diameter
in./mm
Outside
Diameter
in./mm Torque (in.-lb.)
ASPB05075NM 1.56 x 0.85 x 0.12
40 x 22 x 3
2 1.28
32
1.48
38
.47
12
1.28
33
1.56
40
15
ASPB100125NM 2.19 x 1.19 x 0.12
56 x 30 x 3
2 1.18
30
2.14
54
.51
13
1.91
49
2.19
56
20
AS150200250NM 3.50 x 1.95 x 0.12
89 x 49 x 3
2 .95
24
3.42
87
.51
13
3.14
80
3.50
89
35
AS300350400NM 5.12 x 3.55 x 0.12
130 x 90 x 3
2 .81
21
5.05
128
.51
13
4.77
121
5.12
130
50
CHS Controls AB
Tel +46 42 38 61 00, Fax +46 42 38 61 29
chs@chscontrols.se www.chscontrols.se

1345
Accessories: Hole Seals
Hole Seals
PH (763) 422-2211 • FX (763) 422-2600 • homanonline.com
Subject to change without notice © 2011 Pentair Technical Products
HOL-SEALERS® Fit These Hole Sizes
Catalog Number Fits
Min. Hole
Dia. (inch)
Min. Hole
Dia. (millimeter)
Nut
Orientation
ASPB05075NM .5-in. conduit holes .86 22 A
22.5-mm pushbutton holes .88 22 A
.75-in. conduit holes 1.09 28 A
ASPB100125NM 30.5-mm pushbutton holes 1.20 31 A
1-in. conduit holes 1.36 35 B
1.25-in. conduit holes 1.70 43 A
AS150200250NM 1.5-in. conduit holes 1.95 50 A
2-in. conduit holes 2.38 60 B
2.5-in. conduit holes 2.88 73 A
AS300350400NM 3-in. conduit holes 3.50 89 A
3.5-in. conduit holes 4.00 102 B
4-in. conduit holes 4.50 114 A
CHS Controls AB
Florettgatan 33
SE-254 67 Helsingborg, Sweden
Tel +46 42 38 61 00, Fax +46 42 38 61 29
chs@chscontrols.se
www.chscontrols.se

1346
Accessories: Corrosion Inhibitors
Corrosion Inhibitors
PH (763) 422-2211 • FX (763) 422-2600 • homanonline.com
Subject to change without notice © 2011 Pentair Technical Products
Corrosion Inh ibitors
Corrosion Inh ibitors
Industrial Corrosion Inhibitors
Homan corrosion inhibitors protect
• Interior components of electrical enclosures, boxes, consoles and
wireways
• Interior components of electronic enclosures
• Electrical and electronic equipment and controls
• Parts and components that are packaged in crates during shipping
and storage
• Switch gear and relay cabinets
• Interiors of pipes, conduits and fuse boxes
• Process control computers, instruments and recording devices
• Tool chest interiors and contents
• Equipment stored at construction sites
Chief Advantages
• Protects against salt and high humidity
• Eliminates the need of oiling, plating or dipping metal
• Puts protected equipment to use immediately without degreasing
or coating removal
How They Work
Each inhibitor contains a special chemical combination that vaporizes
and condenses on all surfaces in an enclosed area. Vapors will
redeposit as needed in the event of condensation of moisture on
surfaces. These vapors reach every part of an enclosure, protecting all
interior components. Spraying, wiping or greasing are not required.
This eliminates precoating, special wraps and drying agents.
Protection is eective even in salt-water atmospheres. The AHCI5E
and AHCI10E emitters have additional red-metal inhibitors for further
protection. Enclosures containing corrosion inhibitors must be
reasonably sealed.
Life Expectancy and Usage
The normal useful life-span of Homan corrosion inhibitors is in
excess of one year. However, inhibitor life expectancy is shortened by
approximately 25 percent when exposed to temperatures above 104
F (40 C). This product is not recommended for use where temperature
exceeds 199 F. Since Homan corrosion inhibitors are vapor-phase
protective, all surfaces to be protected should be accessible to the
vapors. The maximum distance the vapors can travel is approximately
1.50 ft. (.46 m). Protection of long, narrow enclosures can be achieved
with tape or multiple inhibitors.
Storage and Handling
Each Homan corrosion inhibitor is individually packaged in a
resealable bag for maximum eectiveness at the time of usage.
Corrosion inhibitors should be stored at temperatures not exceeding
120 F (45 C ). Homan corrosion inhibitors are not returnable.
When determining the proper corrosion inhibitor for your
application, assume the enclosure volume to be protected is greater
than calculated if (1) cabinet doors are opened frequently, (2) cabinet
is located in an extremely corrosive area and/or (3) cabinet length
divided by depth is greater than four.
AHCI1DV
Foam device protects one cubic foot (28 liters) of enclosure volume
for approximately one year.
Size: .25 x 1.25 x 3.00 in. (6 x 32 x 76 mm)
AHCI5E
Emitter protects 5 ft.3 (142 liters) of enclosure volume for
approximately two years from the date of manufacture. Emitters
contain additional red metal (non-ferrous) inhibitors.
Size: 2.31 in. (diameter) x 0.81 in. (high) (59 mm x 21 mm)
AHCI10E
Emitter protects 10 ft.3 (283 liters) of enclosure volume for
approximately two years from the date of manufacture. Emitters
contain additional red metal (non-ferrous) inhibitors.
Size: 2.31 in. (diameter) x 1.38 in. (high) (59 mm x 35 mm)
AHCI60R
Tape protects 60 ft.3 of enclosure volume per roll. Use approximately
2.50 in. (63 mm) of tape per cubic foot (28 liters) of enclosure volume
to be protected. Each roll of tape is packaged individually in a
resealable bag.
Size: .25 in. x .75 in. x 12.00 ft. (6 mm x 19 mm x 3.6 m)
AHCI240R
Tape protects 240 ft.3
of enclosure volume per roll. Use approximately
1.00 in. (25 mm) of tape per cubic foot (28 liters) of enclosure volume
to be protected. Each roll of tape is packaged individually in a
resealable bag.
Size: .25 in. x 2.00 in. x 20.00 ft. (6 mm x 51 mm x 6.1 m)
AHCI238S
Spray is a non-conductive, nonammable, vapor-phase lm and is
non-toxic. It has essentially neutral pH value. Application provides
instant protection against corrosion. Spray is water soluble and can
be easily ushed away with water if desired. This product should
be kept from freezing and has a shelf life of 2+ years in normal
warehouse conditions.
Bulletin: A80
Standard Product
Catalog Number Enclosure Volume Protected (ft.3 ) Enclosure Volume Protected (liters) Package Qty.
AHCI1DV 1 28.32 50
AHCI5E 5 141.6 25
AHCI10E 10 283.2 12
AHCI60R 60 per roll 1699 per roll 3
AHCI240R 240 per roll 6797 per roll 1
AHCI238S Corrosion Inhibitor Spray Corrosion Inhibitor Spray 6
Metal Protection Chart
Metal Protected by Chemical Unprotected by Chemical
Aluminum Marked reduction of surface attack; no pitting Severe surface attack; tarnish; pitting
BrassaDecreased tarnish; very minor surface attack Surface discoloration; pitting
Steel, Iron No change Severe corrosion
CopperaSlight staining Heavy corrosive attack
Zinc Plate Slight discoloration Severe corrosion
Tin Plate Slight discoloration Moderate corrosive attack
a AHCI5E and AHCI1OE emitters are recommended for these materials
CHS Controls AB
Tel +46 42 38 61 00, Fax +46 42 38 61 29
chs@chscontrols.se www.chscontrols.se

1347
Accessories: Corrosion Inhibitors
Corrosion Inhibitors
PH (763) 422-2211 • FX (763) 422-2600 • homanonline.com
Subject to change without notice © 2011 Pentair Technical Products
Epoxy Patch Kit
Applications include sealing rivets,
bolts, metal joints, seams and welds,
cement cracks, pipe couplings, joints
and tees. Each kit has two tubes of
material, application instructions
and a mixing stick. When the resin
and hardener are mixed, a gray
epoxy is formed which cures at room
temperature, has high adhesion and
will not sag. It is resistant to oils, acids
and chemicals.
Bulletin: A80
Catalog Number Description
A307 Epoxy Patch Kit
Touch-Up Paint Homan Touch-Up Paint is used to repair the nish of enclosures and
panels. Furnished in 12-oz. spray cans.
Bulletin: A80, DACCY, P20
Catalog Number Color
ATPWE White Enamel
ATPSG Gray Enamel
ATPPY61 ANSI 61 Gray Polyester Powder
ATPDLB DesignLine Beige Enamel
ATPMG Slate Gray Enamel
ATPHS61 High Solids ANSI 61 Gray
ATPFG Light Gray for berglass
ATPG7035 RAL 7035 Gray
ATPG7032 RAL 7032 Gray
ATPB7021 RAL 7021 Black
ATPB9005 RAL 9005 Black
CHS Controls AB
Florettgatan 33
SE-254 67 Helsingborg, Sweden
Tel +46 42 38 61 00, Fax +46 42 38 61 29
chs@chscontrols.se
www.chscontrols.se

1348
Accessories: Electrical Accessories
Terminal Block Kits
PH (763) 422-2211 • FX (763) 422-2600 • homanonline.com
Subject to change without notice © 2011 Pentair Technical Products
Electrical A ccessorie s
Terminal Block K its
Terminal Block Kit Assembly for Junction
Boxes Overview
Provides a strong, versatile and easily installed means for mounting
terminal blocks in Homan junction boxes and other enclosures.
These kits can be installed in:
1. Oil-Tight Junction Boxes
2. Fiberglass Type 4X Enclosures
3. Hinged Cover Lift-O Type 3R Enclosures (16 gauge only)
These kits will NOT t in Small Wall-Mount Enclosures or HCR Type 3R
Enclosures.
How To Order
Terminal Kit Assemblies can be installed with the terminal straps
or terminal strips parallel to the A dimension or the B dimension of
the box. Each box requires one bracket assembly plus the desired
number of terminal straps or terminal block strips. The bracket
assembly and the terminal straps or terminal block strips must be
ordered separately.
1. To select the correct terminal straps or terminal block strips,
determine whether they will be mounted parallel to the A
dimension or parallel to the B dimension of the box. Be sure
to specify the quantity required.
2. To select the correct bracket assembly, determine whether
the brackets will be mounted parallel to the A dimension or
to the B dimension of the box.
Component Quantity Comments
Bracket Assembly 1 Mount parallel to A or B dimension
Terminal Straps As required for installation; specify when ordering Use straps or strips
Terminal Block
Strips
As required for installation; specify when ordering Use straps or strips
CHS Controls AB
Tel +46 42 38 61 00, Fax +46 42 38 61 29
chs@chscontrols.se www.chscontrols.se

1349
Accessories: Electrical Accessories
Terminal Block Kits
PH (763) 422-2211 • FX (763) 422-2600 • homanonline.com
Subject to change without notice © 2011 Pentair Technical Products
Terminal Block Bracket Assemblies for
Junction Boxes
Each bracket assembly consists of two brackets which mount on the
weldnuts in the box. White nish over pretreated surfaces.
Bulletin: A80
Catalog Number
Enclosure Dimension
Parallel to Brackets
K
in./mm
L
in./mm
A6JTMA 6 1.44
37
5.00
127
A8JTMA 8 1.44
37
7.00
178
A10JTMA 10 1.44
37
9.00
229
A10JTMAXK 10 2.69
68
9.00
229
A12JTMA 12 2.69
68
11.00
279
A14JTMA 14 2.69
68
13.00
330
Terminal Box Straps for Junction Boxes
A terminal strap is a 12 gauge at strap which mounts on top of the
brackets. The straps can be positioned anywhere along the brackets
and are held in place with spring locking nuts. White nish over
pretreated surfaces. Terminal blocks are not included with terminal
straps. Does not work with DIN rail-mounted terminal blocks.
Bulletin: A80
Catalog Number
Enclosure Dimension
Parallel to Straps
K
in./mm
M
in./mm
Useable
Space, N
in./mm
A8JS 8 1.44
37
5.75
146
4.62
117
A10JS 10 1.44
37
7.75
197
6.62
168
A12JS 12 1.44
37
9.75
248
8.62
219
A14JS 14 2.69
68
11.70
297
10.62
270
A16JS 16 2.69
68
13.70
348
12.62
321
Terminal Block Strips for Junction Boxes
A terminal block strip is a at channel holding Buchanan 600V
terminal blocks with tubular clamp contacts assembled on the
channel. These terminal blocks will accept wire sizes from #22
through #10. The number of terminal blocks assembled on each
channel is shown in the table. The terminal block strips can be
positioned anywhere along the brackets and are held in place with
spring locking nuts. The channel has a plated nish. Terminal blocks
are included with terminal block strips. Marathon terminal blocks
can be provided on special order. Other brands and sizes of terminal
blocks are available on special order.
Bulletin: A80
Catalog Number
Enclosure Dimension
Parallel to Strips
Terminal Blocks
per Strip
M
in./mm
Useable
Space, N
in./mm
P
in./mm
A8JBNS 8 8 5.75
146
4.62
117
3.00
76
A10JBNS 10 12 7.75
197
6.62
168
3.00
76
A12JBNS 12 16 9.75
248
8.62
219
3.00
76
A14JBNS 14 20 11.75
298
10.62
270
4.25
108
A16JBNS 16 24 13.75
349
12.62
321
4.25
108
CHS Controls AB
Florettgatan 33
SE-254 67 Helsingborg, Sweden
Tel +46 42 38 61 00, Fax +46 42 38 61 29
chs@chscontrols.se
www.chscontrols.se

1350
Accessories: Electrical Accessories
Terminal Block Kits
PH (763) 422-2211 • FX (763) 422-2600 • homanonline.com
Subject to change without notice © 2011 Pentair Technical Products
Terminal Block Kit Assembly for Type 4, 12 and
13 Enclosures Overview
Provide strong, versatile and easily installed terminal block mounting
supports. These assemblies t many single-door Homan enclosures.
They also t large Type 1 enclosures and the larger sizes of Hinged
Cover Lift-O Type 3R enclosures as well as most of the Two-Door
Wall-Mounted Type 12 enclosures. Kits have white nish over
pretreated surfaces. Terminal Block Kit Assemblies can be installed
with straps parallel to the A dimension or the B dimension of the
enclosure.
How To Order
Each enclosure requires one bracket assembly plus the desired
number of terminal straps. The bracket assembly and the terminal
straps must be ordered separately.
1. To select the correct terminal straps, determine whether the
terminal straps will be mounted parallel to the A dimension
or the B dimension of the enclosure. Be sure to specify the
quantity required.
2. To select the correct bracket assembly, determine whether
the brackets will be mounted parallel to the A dimension or
the B dimension of the enclosure. Refer to the table.
One bracket is required for each row of collar studs parallel to the
brackets. As a result, if the enclosure dimension is 24.00 in. (610 mm),
30.00 in. (762 mm) or 36.00 in. (914 mm) and if two brackets are needed
to cover all of the collar studs order A___NTMA2; if three brackets are
needed to cover the studs order A___NTMA3.
For example: If you have an A302406LP enclosure and want ve
terminal straps running vertically, order one A24NTMA2 bracket
assembly plus ve A30T straps. If you have an A483008LP enclosure
and want six terminal straps running vertically, order one A30NTMA3
bracket assembly plus six A48T straps. If you have an A363006LP
enclosure and want seven terminal straps running horizontally, order
one A36NTMA2 bracket assembly plus seven A30T straps.
Terminal blocks are not included. Be sure to order one bracket
assembly plus the desired number of terminal straps for each
enclosure.
Component Qty Required Comments
Bracket Assembly 1 Terminal blocks are not included
Terminal Straps Depends on installation Specify quantity when ordering
Terminal Strap Support Kit One kit per strap Optional
Bracket Assembly for Type 4, 12 and 13 Enclosures
Each bracket assembly consists of two or three brackets which mount on the enclosure collar studs.
Bulletin: A80
Catalog Number Number of Brackets
Enclosure
Dimension
Parallel
to Brackets (in.)
Enclosure
Dimension
Parallel
to Brackets (mm)
Bracket
Length, L (in.)
Bracket
Length, L (mm)
A12NTMA2 2 12.00 305 8.50 216
A16NTMA2 2 16.00 406 12.50 318
A20NTMA2 2 20.00 508 16.50 419
A24NTMA2 2 24.00 610 20.50 521
A24NTMA3 3 24.00 610 20.50 521
A30NTMA2 2 30.00 762 26.50 673
A30NTMA3 3 30.00 762 26.50 673
A36NTMA3 3 36.00 914 32.50 826
CHS Controls AB
Florettgatan 33
SE-254 67 Helsingborg, Sweden
Tel +46 42 38 61 00, Fax +46 42 38 61 29
chs@chscontrols.se
www.chscontrols.se

1351
Accessories: Electrical Accessories
Terminal Block Kits
PH (763) 422-2211 • FX (763) 422-2600 • homanonline.com
Subject to change without notice © 2011 Pentair Technical Products
Terminal Straps for Type 4, 12 and 13 Enclosures
The terminal straps can be positioned anywhere along the brackets and are held in place with spring locking nuts. This feature makes wiring
easy and simplies the addition of terminal straps at a later date.
Bulletin: A80
Catalog Number
Enclosure
Dimension
Parallel
to Straps M (in.) M (mm)
Useable
Space, N (in.)
Useable
Space, N (mm)
A16T 16 13.00 330 11.75 298
A20T 20 17.00 432 15.75 400
A24T 24 21.00 533 19.75 502
A30T 30 27.00 686 25.75 654
A36T 36 33.00 838 31.75 806
A42T 42 39.00 991 37.75 959
A48T 48 45.00 1143 43.75 1111
A60T 60 57.00 1448 55.75 1416
Terminal Strap Support Kit Designed to provide a simple and versatile method of mounting
terminal straps. The Z-shaped brackets are 1.50-in. (38-mm) high with
white nish. Brackets can be attached to panels or to enclosure walls.
A terminal strap is then installed on the brackets. Terminal straps
must be ordered separately. Two brackets are furnished with each
kit. Spacing between brackets will depend on the number and size
of terminal blocks installed on the terminal strap. We recommend a
maximum spacing of 15 in. (381 mm) for an average installation.
Bulletin: A80
Catalog Number Description
ATZ Two Z-shaped brackets
Terminal strap NOT included.
CHS Controls AB
Florettgatan 33
SE-254 67 Helsingborg, Sweden
Tel +46 42 38 61 00, Fax +46 42 38 61 29
chs@chscontrols.se
www.chscontrols.se

1352
Accessories: Electrical Accessories
Grounding
PH (763) 422-2211 • FX (763) 422-2600 • homanonline.com
Subject to change without notice © 2011 Pentair Technical Products
Grounding
DIN Type Rails
DIN Type Rails receive terminal blocks, relays, switches, lters,
timers and various other electrical and electronic components
manufactured by European, Japanese and U.S. rms. Available in
three styles: (1) asymmetric, DIN 1 prole; (2) symmetric, DIN 3 prole;
(3) heavy-duty CENELEC prole. All DIN rails are 78.74-in. (2000-mm)
long and plated.
Bulletin: A80
Catalog Number Description
ADNR1 DIN 1 mounting rail TS32
ADNR3 DIN 3 mounting rail TS35x7.5
ACENR1 CENELEC mounting rail TS35x15
Grounding Device Grounding lug is designed to provide a means of attaching a
grounding conductor to an electrical enclosure. Will accept wire
sizes 2 through 14. Grounding Straps can be used to provide
electrical continuity between metal parts which must be electrically
connected. Each strap consists of a length of braided copper with a
ring terminal at both ends. Braid is insulated with green and yellow
striped plastic.
Bulletin: A80
Catalog Number Description
Approximate
Wire Size (AWG)
Length
Between Ring
Terminals C-to-C (in.)
Length
Between Ring
Terminals C-to-C (mm)
Ring Terminal
Hole Diameter (in.)
Ring Terminal
Hole Diameter (mm)
AGS808 Grounding Strap #8 8.19 208 0.406 10
AGS816 Grounding Strap #8 16.19 411 0.406 10
AGS408 Grounding Strap #4 8.19 208 0.406 10
AGS416 Grounding Strap #4 16.19 411 0.406 10
AGLK2 Grounding lug kit 2-14 — — — —
Grounding Bar System Industry Standards
UL Component Recognized; File No. E61997
Three sizes of grounding bars and insulated mounting brackets are
available. Bars are plated copper with M6 and M5 tapped holes to
provide a common point for grounding equipment. Fits all enclosures
if mounted vertically. See table for horizontal mounting.
Bulletin: P20
Catalog Number Description
Length
mm/in.
Number of
Holes and
Screws M6
Number of
Holes and
Screws M5
PGS2K Fits 400-mm deep frame
front to back horizontally
200
7.87
3/5 10/10
PGS4K Fits 600-mm deep frame
front to back horizontally
400
15.75
9/11 20/20
PGS6K Fits 800-mm deep frame
front to back horizontally
600
23.62
15/17 30/31
CHS Controls AB
Florettgatan 33
SE-254 67 Helsingborg, Sweden
Tel +46 42 38 61 00, Fax +46 42 38 61 29
chs@chscontrols.se
www.chscontrols.se

1353
Accessories: Electrical Accessories
Grounding
PH (763) 422-2211 • FX (763) 422-2600 • homanonline.com
Subject to change without notice © 2011 Pentair Technical Products
PROLINE® Grounding Kit
The Grounding Kit allows a PROLINE®
enclosure to be grounded to VDE
specications. Includes six 12 gauge
wires 411-mm (16.19-in.) long with
ring terminations and M6 mounting
hardware.
Bulletin: P9
Catalog Number
Wire
Size
Length Between
Ring Terminals
mm/in.
Ring Terminal
Hole Diameter
mm/in.
PGK 12 ga. 411
16.19
7
.29
CHS Controls AB
Florettgatan 33
SE-254 67 Helsingborg, Sweden
Tel +46 42 38 61 00, Fax +46 42 38 61 29
chs@chscontrols.se
www.chscontrols.se

1354
Accessories: Electrical Accessories
Electrical Interlocks
PH (763) 422-2211 • FX (763) 422-2600 • homanonline.com
Subject to change without notice © 2011 Pentair Technical Products
Electrical I nterlock s
Electrical Interlocks
Industry Standards
UL 508A Component Recognized; File No. E61997
CSA Certied; File No. 42186
Application
Provide positive internal safety lockout on electrical enclosures
while the equipment is energized. Catalog numbers AEK115,
AEK230 and AEK460 are used with standard Homan door latching
mechanisms. When energized, these interlocks prevent the door
handle from being turned to open the door. Fit either clockwise or
counterclockwise handles in the following enclosures:
1. All two-door Type 4 and 12 enclosures
2. All Type 4X with 3-point latch enclosures
3. Free-standing Type 12 enclosures
4. All one-door Type 12 enclosures with latch kits installed
The interlocks will t the following enclosures, but modications are
required. Consult the factory for more information.
1. Two-door Type 12 enclosures for ange-mounted
disconnects
2. Heavy duty free-standing Type 12 enclosures for ange-
mounted disconnects
3. Modular Type 12 enclosures for ange-mounted disconnects
4. Multi-door Type 12 enclosures
The interlocks will also t most Homan custom enclosures with
door latching mechanisms similar to the mechanisms used on the
preceding enclosures. Electrical interlocks will not t CONCEPT®
enclosures or Bulletin A25 and A26 enclosures. Interlocks are not
designed to be used in place of the standard door or cover latch.
Catalog numbers AEK115NDH, AEK230NDH and AEK460NDH are
designed to be used on some Homan enclosures and boxes which
have exterior latching only. When energized, these interlocks will
prevent the enclosure door from being opened. They t on the door
or cover of the following enclosures and maintain UL Type 4, 4X and
12 when properly installed per Homan instructions:
1. One-door Type 4 and 4X enclosures
2. Two-door Type 4 and 4X enclosures
3. One-door Type 12 enclosures
4. Larger sizes of CH, CHS, CHNF, CHNFSS and CHAL junction
boxes
5. Type 1 and large Type 1 enclosures
The interlocks also t in most Homan custom enclosures and boxes
which have doors or covers hinged similar to doors or covers on the
preceding enclosures.
Installation
AEK115, AEK230 and AEK460 mount on the inside of the enclosure
door using the same screws which hold the door handle in place. The
strike plate attaches to the existing latch assembly.
Specications
• Rugged steel construction and plated nish
• Solenoids are rated for continuous duty and will stand up under
heavy industrial use
• Packaged complete with a solenoid assembly, strike plate or
bracket and instructions for eld installation
• Handles and latch mechanisms are not included.
Bulletin: A80
Standard Product A-EK___ Style
Catalog Number Volts @ 50/60 Hz Normal/Inrush Amps @ 60 Hz Normal/Inrush Amps @ 50 Hz
AEK115 110/120 .100/.63 .120/.69
AEK230 220/240 .050/.32 .060/.35
AEK460 440/480 .025/.16 .030/.18
Standard Product AEK___NDH Style
Catalog Number Volts @ 50/60Hz Normal/Inrush Amps @ 60 Hz Normal/Inrush Amps @ 50 Hz
AEK115NDH 110/120 .100/.63 .120/.69
AEK230NDH 220/240 .050/.32 .060/.35
AEK460NDH 440/480 .025/.16 .030/.18
CHS Controls AB
Florettgatan 33
SE-254 67 Helsingborg, Sweden
Tel +46 42 38 61 00, Fax +46 42 38 61 29
chs@chscontrols.se
www.chscontrols.se

1355
Accessories: Electrical Accessories
Electrical Interlocks
PH (763) 422-2211 • FX (763) 422-2600 • homanonline.com
Subject to change without notice © 2011 Pentair Technical Products
CHS Controls AB
Tel +46 42 38 61 00, Fax +46 42 38 61 29
chs@chscontrols.se www.chscontrols.se

1356
Accessories: Electrical Accessories
Electrical Interlocks
PH (763) 422-2211 • FX (763) 422-2600 • homanonline.com
Subject to change without notice © 2011 Pentair Technical Products
Electrical Interlock Defeater Enables authorized personnel to enter an enclosure while the
enclosure contents are energized. Defeater is a key-operated
momentary contact switch with contacts normally closed. Turning
the key disengages the circuit to the electrical interlock. Can be used
with all 110/120 volt Homan electrical interlocks. A relay must be
used in conjunction with switch for 220/240 volt and 440/480 volt
applications.
Bulletin: A80
Catalog
Number Description
Amps @ 120V/60 Hz Normal/
Inrush
Amps @ 110V/50 Hz Normal/
Inrush
AEKDF Electrical interlock
defeater
10 Max. 10 Max.
Panel Interface Connector
Industry Standards
UL 508A Component Recognized; File No. E61997
The panel interface connector provides a connection for a PLC
or computer housed inside an enclosure without opening the
enclosure door. It mounts on the outside of the enclosure. The HBE
size 32 housing and hinged cover are die cast aluminum. The closed
assembly is rated UL Type 4. The panel interface connector enclosure
includes:
• A duplex receptacle
• A 9-pin D-sub pass-through connector
• An RJ 45 pass-through connector
• A 3-amp reset
• A covered terminal block with screw connections for the internal
power connection
Bulletin: A80
Catalog Number Description
AC4DB9RJ45GFI Panel Interface Connector
CHS Controls AB
Florettgatan 33
SE-254 67 Helsingborg, Sweden
Tel +46 42 38 61 00, Fax +46 42 38 61 29
chs@chscontrols.se
www.chscontrols.se

1357
Accessories: Electrical Accessories
Electrical Interlocks
PH (763) 422-2211 • FX (763) 422-2600 • homanonline.com
Subject to change without notice © 2011 Pentair Technical Products
Notes
CHS Controls AB
Florettgatan 33
SE-254 67 Helsingborg, Sweden
Tel +46 42 38 61 00, Fax +46 42 38 61 29
chs@chscontrols.se
www.chscontrols.se

1358
Accessories: Electrical Accessories
Lighting Packages
PH (763) 422-2211 • FX (763) 422-2600 • homanonline.com
Subject to change without notice © 2011 Pentair Technical Products
Lighting Packa ges
PANELITE™ Enclosure Lights Overview
Industry Standards
UL 508A Component Recognized; File No. E61997
cUL Component Recognized per CSA C22.2 No 14; File No.
E61997
CSA File No. 42186
Maintains UL/CSA Type 4, 4X and 12 enclosure rating when properly
installed in a Homan enclosure.
Application
Versatile, slim-prole LED and uorescent lights provide mounting
exibility and are easy to install in any enclosure. Terminal blocks
on both ends of the light allow for easy wiring. Accessories include
ganging cables, power cords and door switches, all provided with
plug-and-play connectors for easy connection to the terminal blocks
with an innovative terminal connection system. LED version provides
superior lighting performance with minimal power consumption.
Features
• Slim prole allows light to be tucked up out of the way for easy
panel installation
• Versatile mounting tabs allow the light to be positioned
horizontally or vertically; two-way mounting tabs can be installed
on front or back of light for ideal orientation
• Mounting tabs provide easy access point for attachment hardware;
light does not need to be disassembled for installation
• Includes mounting hardware for the following enclosure
installations: PROLINE Frame, Enclosure Top, Panel Mount and
Unistrut
• On/o switch incorporated in light; optional remote door switch
accessory available to activate light when enclosure door is
opened
• Up to ve lights can be daisy-chained together
• Plug-and-play terminal connection system:
- Pre-wired connection sockets on both ends of light allow use of
Homan cable accessories
- Optional terminal blocks snap into the connection sockets
allowing customers to use own wiring methods; two terminal
blocks provided with each light kit
- Power supply can be wired manually with Homan PANELITE
Power Cable with Leads or with Homan optional PANELITE
Power Cord
- Ganging cables are available in 2-, 4- and 6-ft. lengths to easily
join up to ve lights together using one power supply
- Remote door switch for easy door activation eliminates need to
mount light in the exact location required to activate the light
Specications
• Extruded aluminum center support
• Black composite end caps
• Black composite mounting tabs
• Each light xture includes two mounting tabs, two pre-wired
connection sockets, two optional terminal blocks that snap into
the connection sockets and enclosure attachment hardware (bulb
not included with uorescent light)
CHS Controls AB
Florettgatan 33
SE-254 67 Helsingborg, Sweden
Tel +46 42 38 61 00, Fax +46 42 38 61 29
chs@chscontrols.se
www.chscontrols.se

1359
Accessories: Electrical Accessories
Lighting Packages
PH (763) 422-2211 • FX (763) 422-2600 • homanonline.com
Subject to change without notice © 2011 Pentair Technical Products
PANELITE™ LED Enclosure Light
• 24 VDC operation for superior
lighting performance with minimal
power consumption
• 140-degree cone angle casts a
broad covering of neutral light
• Center section rotates 120 degrees
to re-direct light where needed
• Long life; 70 percent of initial
luminance at 50,000 hours (at 25 C)
• High power LED emitters produce
470 Lumens for superior lighting
performance; provides up to 50
percent more usable light than
comparable length uorescent
lights
• Can be wired using optional
PANELITE Cable Accessories or
can be hard-wired with terminal
blocks included in hardware kit
• Up to ve lights can be daisy-
chained together using hard-wired
connection to power supply or
catalog number LPC72 power
cable with leads
Bulletin: A80LT
Catalog Number Description VDC Amps
W
in./mm
X
in./mm
LED24V15 LED Light, 15 in. 24 .5 15.00
381
8.00
203
PP
PP
PP
PP
PP
PANELITE™ Fluorescent Enclosure Light
• 120 VAC, 50/60 Hz operation
• Can be wired using optional
PANELITE™ Cable Accessories or
can be hard-wired with terminal
blocks included in hardware kit
• Available in 15-, 18- and 28-in.
lengths with ability to daisy chain
up to ve lights together using
one power supply
• Fluorescent bulb not included
Bulletin: A80LT
Catalog Number VAC Hz Amps
W
in./mm
X
in./mm
Bulb
(purchase
separately)
LF120V15 120 50/60 .13 14.50
368
9.63
245
F6T5
LF120V18 120 50/60 .13 17.50
445
12.63
321
F8T5
LF120V28 120 50/60 .26 27.75
705
22.88
581
F14T5
PP
PP
;
:
PP
CHS Controls AB
Florettgatan 33
SE-254 67 Helsingborg, Sweden
Tel +46 42 38 61 00, Fax +46 42 38 61 29
chs@chscontrols.se
www.chscontrols.se

1360
Accessories: Electrical Accessories
Lighting Packages
PH (763) 422-2211 • FX (763) 422-2600 • homanonline.com
Subject to change without notice © 2011 Pentair Technical Products
PANELITE™ Power Cords
• Connects light to standard North
American wall socket
• LF120VCORD is for 120 VAC
Fluorescent lights (up to ve lights
can be daisy chained together
using one power cord)
• LED24VCORD is for 24 VDC LED
lights and includes a transformer
to convert 100-240 VAC power
supply (capable of powering only
one LED light)
• Plugs directly into a connection
socket on switch end of the light
• Includes one cable
Power cord not required. Terminal
blocks are provided with each light for
wired connection to electric supply.
Bulletin: A80LT
Catalog Number Description Length
LF120VCORD Fluorescent Light Power Cord 72 in.
LED24VCORD LED Light Power Cord 60 in.
PANELITE™ Power Cable with Leads
• 72-in. power cord provides
convenient connection to an
electrical supply
• Eliminates need to run and tag
individual wires into the light
• Compatible with PANELITE™ LED
and Fluorescent lights
• Plugs directly into connection
socket on switch end of the light
• Includes one 16 AWG cable, black
Power Cable not required. Terminal
blocks are provided with each light for
wired connection to electric supply.
Bulletin: A80LT
Catalog Number Length
LPC72 72 in.
PANELITE™ Ganging Cables
• Ganging Cables provide
convenient method for joining
up to ve lights together while
utilizing one power supply
• Available in 24-, 48- and 72-in.
lengths
• Plugs directly into connection
socket on either end of the light
• Compatible with PANELITE™ LED
and Fluorescent lights
• Includes one 16 AWG cable, black
Ganging Cables not required. Terminal
blocks are provided with each light for
hard-wired connections.
Bulletin: A80LT
Catalog Number Length
LGCABLE24 24 in.
LGCABLE48 48 in.
LGCABLE72 72 in.
PANELITE™ Door Switch Cable
• Easily connects PANELITE™ LED
or Fluorescent Light to a Remote
Door Switch
• T-connector allows the Door
Switch Cable to be connected with
a ganging cable or power supply
to the switch end of the light
• Available in 18- and 72-in. lengths
• Includes one 18 AWG cable, black
Door Switch Cables not required.
Terminal blocks are provided with each
light for hard-wired connection to
remote door switch.
Bulletin: A80LT
Catalog Number Length
LDSWITCH18 18 in.
LDSWITCH72 72 in.
CHS Controls AB
Florettgatan 33
SE-254 67 Helsingborg, Sweden
Tel +46 42 38 61 00, Fax +46 42 38 61 29
chs@chscontrols.se
www.chscontrols.se

1361
Accessories: Electrical Accessories
Lighting Packages
PH (763) 422-2211 • FX (763) 422-2600 • homanonline.com
Subject to change without notice © 2011 Pentair Technical Products
PANELITE™ Remote Door Switches
• Remote door switch activates the
light when the enclosure door is
opened
• Mounts on enclosure frame and
includes mounting hardware
• Mounting plate is 14 gauge steel
with a plated nish
• Can be hard-wired to the
PANELITE™ LED or Fluorescent
light or connected via the
PANELITE Door Switch Cable
Bulletin: A80LT, P20
Catalog Number Description
ALFSWD Door switch assembly (order connection cable separately)
PLFSWD Door switch assembly for PROLINE® (order connection cable separately)
PANELITE™ Wiring Options
See the table on the drawing for cable clearance dimensions.
2SWLRQ(DFKOLJKWLVFRQWUROOHGE\DUHPRWHGRRUVZLWFK
2SWLRQ$OOOLJKWVDUHFRQWUROOHGE\DVLQJOHUHPRWHGRRUVZLWFK
2SWLRQ7KHODVWOLJKWLVFRQWUROOHGE\DUHPRWHGRRUVZLWFK7KHILUVWWZROLJKWVDUHPDQXDOO\RSHUDWHG
(OHFWULF3RZHU
(OHFWULF3RZHU
(OHFWULF3RZHU
89046495
CHS Controls AB
Florettgatan 33
SE-254 67 Helsingborg, Sweden
Tel +46 42 38 61 00, Fax +46 42 38 61 29
chs@chscontrols.se
www.chscontrols.se

1362
Accessories: Electrical Accessories
Lighting Packages
PH (763) 422-2211 • FX (763) 422-2600 • homanonline.com
Subject to change without notice © 2011 Pentair Technical Products
Mounting Bracket Kit for Light Package
Kit simplies mounting light package in Homan PROLINE®
disconnect enclosures. Includes brackets, all mounting hardware and
complete instructions.
Bulletin: A80LT
Catalog Number Description
PDLFBRKT Mounting Bracket Kit
Remote Switches for Light Package
Remote switches for the PANELITE™ Enclosure Lights. Mounts on the
frame and includes mounting hardware. Mounting plate is 14 gauge
steel with a plated nish.
Bulletin: A80LT, P20
Catalog Number Description
ALFSWM Manual Switch
ALFSWD Door-Activated Switch
PLFSWM Manual Switcha
PLFSWD Door-Activated Switcha
aFor installation in PROLINE® Enclosures.
CHS Controls AB
Florettgatan 33
SE-254 67 Helsingborg, Sweden
Tel +46 42 38 61 00, Fax +46 42 38 61 29
chs@chscontrols.se
www.chscontrols.se

1363
Accessories: Electrical Accessories
Lighting Packages
PH (763) 422-2211 • FX (763) 422-2600 • homanonline.com
Subject to change without notice © 2011 Pentair Technical Products
Notes
CHS Controls AB
Florettgatan 33
SE-254 67 Helsingborg, Sweden
Tel +46 42 38 61 00, Fax +46 42 38 61 29
chs@chscontrols.se
www.chscontrols.se

1364
Accessories: Electrical Accessories
Power Distribution Units
PH (763) 422-2211 • FX (763) 422-2600 • homanonline.com
Subject to change without notice © 2011 Pentair Technical Products
Power Distrib ution Unit s
Rack- and Panel-Mount Power Distribution Units (PDUs)
Industry Standards
UL/cUL 60950 listed
UL 1449 (Surge protector models only)
EIA 310-D (19-in. rack-mount models only)
Application
Rack- and Panel-Mount PDUs not only provide convenient, reliable
power to equipment mounted in cabinets or on open frame
racks, they can also be congured to meet a wide range of design
specications.
Features
• Power on/o LED indicates whether power is available at the PDU
• External ground stud provided on single-phase models for secure
grounding
• Circuit breakers provide additional equipment protection
• Circuits are isolated on dual circuit model; each has its own circuit
breaker
• Reset button provides easy access to circuit breaker reset
• Surge protector models have an indicator LED to verify surge
circuitry protection
•
Rack-mount models mount directly to rack or with adapter bracket
• Rack-mount models designed for single-phase applications
• Panel-mount models can be mounted ush or with hanging
bracket
• Panel-mount models available for both one- and three-phase
applications
• Three-phase models have three 20 A, double-pole magnetic
breaker/switches with an integral switch guard
Specications
• Steel housing
• Power cord with molded-on plug:
- 12-in. (305-mm) long single-phase model: 6 ft. (1.8 m)
- Other single-phase models: 15 ft. (4.6 m)
- Three-phase models: 10 ft. (3 m)
Contact Homan for custom modications and non-standard
oerings.
Finish
Black, low-gloss textured paint.
Bulletin: DPS
Standard Product Single-Phase Rack-Mount
Catalog Number
Surge
Protection
Amp
Meter
Load
Rating
Voltage
(VAC)
Joule
Rating Receptacle Location
No. of
Receptacles Receptacle Style Power Cord Plug
Rack
Units
DP1N190615 No No 15A 120 — Front 6 NEMA 5-15R NEMA 5-15P 1
DP1N191415 No No 15A 120 — 6 front, 8 back 14 NEMA 5-15R NEMA 5-15P 1
DP1N191415M No Yes 15A 120 — 6 front, 8 back 14 NEMA 5-15R NEMA 5-15P 1
DP1N191015S Yes No 15A 120 2000 2 front, 8 back 10 NEMA 5-15R NEMA 5-15P 1
DP1N191020 No No 20A 120 — 2 front, 8 back 10 NEMA 5-20R NEMA 5-20P 1
DP1N191020S Yes No 20A 120 2000 2 front, 8 back 10 NEMA 5-20R NEMA 5-20P 1
DP1N191020ST Yes No 20A 120 2000 2 front, 8 back 10 NEMA 5-20R NEMA L5-20P Twist Lock 1
DP1N191420 No No 20A 120 — 6 front, 8 back 14 NEMA 5-20R NEMA 5-20P 1
DP1N191420T No No 20A 120 — 6 front, 8 back 14 NEMA 5-20R NEMA L5-20P Twist Lock 1
DP1N190430X No No 30A 120 — 4 front, 4 back 8 Front, NEMA 5-15R - 15A;
Back, NEMA L5-30R-30A
NEMA L5-30P Twist Lock 2
Isolated circuits on dual-circuit models with separate circuit breakers.
CHS Controls AB
Florettgatan 33
SE-254 67 Helsingborg, Sweden
Tel +46 42 38 61 00, Fax +46 42 38 61 29
chs@chscontrols.se
www.chscontrols.se

1365
Accessories: Electrical Accessories
Power Distribution Units
PH (763) 422-2211 • FX (763) 422-2600 • homanonline.com
Subject to change without notice © 2011 Pentair Technical Products
Standard Product Single-Phase Vertical-Mount
Catalog Number
Length
(in.)
Length
(mm)
Surge
Protection
Amp
Meter
Load
Rating
Voltage
(VAC)
Joule
Rating
No. of
Receptacles Receptacle Style Power Cord Plug
DP1N120615 12.00 305 No No 15A 120 — 6 NEMA 5-15R NEMA 5-15P
DP1N160620S 16.00 406 Yes No 20A 120 2000 6 NEMA 5-20R NEMA 5-20P
DP1N481815 48.00 1219 No No 15A 120 — 18 NEMA 5-15R NEMA 5-15P
DP1N622415 62.00 1575 No No 15A 120 — 24 NEMA 5-15R NEMA 5-15P
DP1N622420 62.00 1575 No No 20A 120 — 24 NEMA 5-20R NEMA 5-20P
DP1N622420T 62.00 1575 No No 20A 120 — 24 NEMA 5-20R NEMA L5-20P Twist Lock
DP1N622420M 62.00 1575 No Yes 20A 120 — 24 NEMA 5-20R NEMA 5-20P
DP1N622420MT 62.00 1575 No Yes 20A 120 — 24 NEMA 5-20R NEMA L5-20P Twist Lock
DP1N622040DT 62.00 1575 No No 20A per circuit 120 — 20, 10 per circuit, dual circuit NEMA 5-20R NEMA L5-20P Twist Lock
DP1E2663030MT 66.00 1676 No Yes 30A 250 — 30 24 IEC C-13, 6 IEC C-19 NEMA L6-30P Twist Lock
Isolate circuits on dual circuit models with separate circuit breakers.
DP1E2663030MT is Ethernet metered; SNMP trap provides remote current monitoring via Ethernet.
Standard Product Three-Phase Vertical-Mount
Catalog Number
Length
(in.)
Length
(mm)
Amp
Meter
Load
Rating
Voltage
(VAC) No. of Outlets per Phase Total Outlets per PDU Required Inlet Style Power Cord Plug
DP3E662490T 66.00 1676 No 30A 208 8 IEC C-13 and 2 IEC C-19 24 IEC C-13 and 6 IEC C-19 IEC C-14 and C-20 NEMA L21-30P Twist Lock
DP3E662490MT 66.00 1676 Yes 30A 208 8 IEC C-13 and 2 IEC C-19 24 IEC C-13 and 6 IEC C-19 IEC C-14 and C-20 NEMA L21-30P Twist Lock
DP3E2663635MT 66.00 1676 Yes 35A 250 10 IEC C-13, 2 IEC C-19 30 IEC C-13, 6 IEC C-19 IEC C-14 and C-20 CA style 50A 250 Vac Twist Lock
DP3E2663635MT is Ethernet metered; SNMP trap provides remote current monitoring via Ethernet.
Rack-Mount PDU Bracket
Allows rack-mount power strips to be mounted to cabinet sides
without using up rack space. Made of plated steel. Includes two
brackets and mounting hardware. Order power strip separately.
Bulletin: DPS
Catalog Number Finish Pkg. Qty.
A19PSMB Plated 2 brackets
IEC Cord Sets
Cord sets help minimize cord tangle,
increasing airow to equipment.
Bulletin: DPS
Catalog Number Description Pkg. Qty.
DP5E 0.5-m (1.64-ft.) IEC patch cord. 18/3 SJT Black. C-14 to C-13 10
DP10E 1-m (3.28-ft.) IEC patch cord, 18/3 SJT Black. C-14 to C-13 10
IEC C-13 Retaining Clip
Secures the IEC C-14 inlet into
the C-13 outlet. Helps to prevent
inadvertently unplugging the cord
set.
Bulletin: DPS
Catalog Number Description Pkg. Qty.
DPCLIP IEC C-13 Retaining Clip 10
CHS Controls AB
Florettgatan 33
SE-254 67 Helsingborg, Sweden
Tel +46 42 38 61 00, Fax +46 42 38 61 29
chs@chscontrols.se
www.chscontrols.se

1366
Accessories: Mounting Accessories
Mounting Kits
PH (763) 422-2211 • FX (763) 422-2600 • homanonline.com
Subject to change without notice © 2011 Pentair Technical Products
Mounting Acc essories
Mounting Kit s
Mounting Bracket Kits
Mounting bracket kits are eld-
installable. Composite kits are
rated for 500 lb. (227 kg) maximum
load. Kit includes four brackets and
mounting hardware for all Type
1 Networking wall-mount and
COMLINE® enclosures.
DMFK1 and DMFK2 include two
14 gauge steel external mounting
brackets and fasteners. Mounting
bracket kit CMFK and CMFKSS each
contain four 12 gauge steel or Type
304 stainless steel external mounting
brackets and fasteners. Sealing
washers are provided with each kit
to maintain Type 4 or 12 rating after
installation. Steel mounting brackets
are plated.
Bulletin: A80
Catalog Number Description
DMFK1 Mounting bracket kit
DMFK2 Mounting bracket kit
CMFK Steel mounting kit
CMFKSS Stainless steel mounting bracket kit
CMTGFT Composite mounting bracket kit
ULTRX® Mounting Bracket Kit
Kit is eld-installable. Corrosion-
resistant berglass material. Type 316
stainless steel mounting hardware
is included. Four mounting brackets
per kit.
Bulletin: UX1Y
Catalog Number Description Kit Qty.
UUMF Mounting Bracket Kit 4
Pole-Mount Kit Use to mount CONCEPT®, Networking and wall-mount enclosures
to poles of various sizes and shapes. Simply attach the plated steel
channel bar to the mounting holes at the back of the enclosure and
wrap the stainless steel strap around the pole and through the bar.
Kit includes two mounting channels, two straps suitable for 3-in. (76-
mm) to 12-in. (305-mm) diameter pole and mounting hardware.
Bulletin: CWY
Catalog Number Fits Enclosure (in.) Fits Enclosure (mm)
CPMK12 when B = 12.00 when B = 305
CPMK16 when B = 16.00 when B = 406
CPMK20 when B = 20.00 when B = 508
CPMK24 when B = 24.00 when B = 610
CPMK30 when B = 30.00 when B = 762
CHS Controls AB
Florettgatan 33
SE-254 67 Helsingborg, Sweden
Tel +46 42 38 61 00, Fax +46 42 38 61 29
chs@chscontrols.se
www.chscontrols.se

1367
Accessories: Mounting Accessories
Mounting Kits
PH (763) 422-2211 • FX (763) 422-2600 • homanonline.com
Subject to change without notice © 2011 Pentair Technical Products
Bottom Support Kit
Bolt-in bottom support plate with mountng hardware. Coated with
ANSI 61 gray polyester powder paint. Required when installing
Homan oor stands or casters on A17 berglass free-standing
enclosures.
Bulletin: A17Y
Catalog Number Use With
A17SUPPORT1 A17 One-Door Fiberglass Enclosures
A17SUPPORT2 A17 Two-Door Fiberglass Enclosures
Unistrut Mounting Kit
Bolt-in internal unistrut channel (8 pieces) with mounting hardware.
Required to install Homan unistrut-mounted free-stand panels
and accessories in two-door A17 berglass enclosures. Homan
A17SUPPORT2 plate must also be installed to secure unistrut.
Bulletin: A17Y
Catalog Number Use With
A17UNISTRUT A17 Two-Door Fiberglass Enclosures
Enclosure Stabilizers Helps prevent injury to workers by stabilizing oor-mount enclosures
which are not bolted down. To install, slip the stabilizer under the
oor stand and tighten two thumb screws. Made from .19-in. (5-mm)
steel plate. Bright orange nish.
Bulletin: A80
Catalog Number Description
AENST Two stabilizers
CHS Controls AB
Florettgatan 33
SE-254 67 Helsingborg, Sweden
Tel +46 42 38 61 00, Fax +46 42 38 61 29
chs@chscontrols.se
www.chscontrols.se

1368
Accessories: Mounting Accessories
Mounting Kits
PH (763) 422-2211 • FX (763) 422-2600 • homanonline.com
Subject to change without notice © 2011 Pentair Technical Products
Floor Stand Kit
Industry Standards
Product maintains UL/CSA Type 4, 4X (stainless steel only) and Type
12 when properly installed on Homan Type 4 or Type 12 enclosures.
Application
Kits are easily installed on most wall-mount Homan enclosures. Can
also be used to elevate Homan free-stand enclosures.
To install, drill holes in the bottom of the enclosure and bolt the oor
stands to the enclosure.It is not necessary to remove the wall-mount
brackets from the enclosure.
Specications
12 gauge steel oor stand has an ANSI 61 gray polyester powder
nish over pretreated surfaces. Stainless steel oor stand is Type 304.
Components
Each kit includes two stands. Two sets of oor stands are
recommended for enclosures larger than double door free-stand
enclosures.
Ordering
Special heights, depths, materials and nishes can be provided on
custom order. Consult factory for information.
Bulletin: A4SY, A80
Catalog Number Material Height, H (in.) Height, H (mm) Width, C (in.) Width, C (mm) L (in.) L (mm)
AFK0608 Steel 6.00 152 8.06 205 7.06 179
AFK0610 Steel 6.00 152 10.06 256 7.06 179
AFK0612 Steel 6.00 152 12.06 306 7.06 179
AFK0618 Steel 6.00 152 18.06 459 7.06 179
AFK1208 Steel 12.00 305 8.06 205 8.12 206
AFK1210 Steel 12.00 305 10.06 256 8.12 206
AFK1212 Steel 12.00 305 12.06 306 8.12 206
AFK1216 Steel 12.00 305 16.06 408 8.12 206
AFK1218 Steel 12.00 305 18.13 461 8.12 206
AFK1220 Steel 12.00 305 20.06 510 8.12 206
AFK1808 Steel 18.00 457 8.06 205 9.17 233
AFK1810 Steel 18.00 457 10.06 256 9.17 233
AFK1812 Steel 18.00 457 12.06 306 9.17 233
AFK1816 Steel 18.00 457 16.06 408 9.17 233
AFK2408 Steel 24.00 610 8.06 205 10.23 260
AFK2410 Steel 24.00 610 10.06 256 10.23 260
AFK2412 Steel 24.00 610 12.06 306 10.23 260
AFK2416 Steel 24.00 610 16.06 408 10.23 260
AFK1208SS Stainless Steel 12.00 305 8.06 205 9.09 231
AFK1210SS Stainless Steel 12.00 305 10.06 256 9.09 231
AFK1212SS Stainless Steel 12.00 305 12.06 306 9.09 231
AFK1216SS Stainless Steel 12.00 305 16.06 408 9.09 231
AFK1218SS Stainless Steel 12.00 305 18.06 459 9.09 231
AFK1224SS Stainless Steel 12.00 305 24.06 611 9.09 231
AFK2410SS Stainless Steel 24.00 610 10.06 256 9.09 231
AFK2412SS Stainless Steel 24.00 610 12.06 306 9.09 231
CHS Controls AB
Florettgatan 33
SE-254 67 Helsingborg, Sweden
Tel +46 42 38 61 00, Fax +46 42 38 61 29
chs@chscontrols.se
www.chscontrols.se

1369
Accessories: Mounting Accessories
Mounting Kits
PH (763) 422-2211 • FX (763) 422-2600 • homanonline.com
Subject to change without notice © 2011 Pentair Technical Products
Notes
CHS Controls AB
Florettgatan 33
SE-254 67 Helsingborg, Sweden
Tel +46 42 38 61 00, Fax +46 42 38 61 29
chs@chscontrols.se
www.chscontrols.se

1370
Accessories: Mounting Accessories
Legs and Casters
PH (763) 422-2211 • FX (763) 422-2600 • homanonline.com
Subject to change without notice © 2011 Pentair Technical Products
Legs and Caster s
Plate Casters
Plate casters can be used on any enclosure to provide mobility.
Casters have dual hard rubber wheels. Each caster has a 350-lb. (159-
kg) load rating. Caster plates are heavy gauge steel with a zinc plated
nish. Casters have ball bearing swivels. A caster kit includes 4 swivel
casters and necessary mounting hardware. Catalog number DMCKC
caster kit also includes four caster skirts which partially conceal caster
plate and mounting hardware. Caster skirts are painted medium gray.
Bulletin: D10
Catalog Number Description
DMCKC Set of four casters, four mounting plates and hardware
Caster Kit
A set of four casters (two locking,
two non-locking) that mount directly
to the bottom of a PROLINE® frame,
0-mm, or 100-mm Solid Base or a
Console. (Do not use on plinth
bases.) Casters elevate the enclosure
110 mm (4.33 in.) when installed.
Caster frames are plated steel with
ball-bearing pivots. Caster wheels are
made of a black polyamide material.
Kit includes M12 mounting hardware.
Order separately.
Casters Maximum Load: 1000 lb.
(453 kg)
Exercise care when using casters
to move the cabinet. Avoid tipping
and damage to the cabinet and
its contents by slowly moving the
cabinet on its casters across smooth,
at ooring. Avoid:
• large cracks
• oor displacement
• seams
• gravel
• any other obstruction
Never use casters while
transporting a cabinet by truck on
roadways.
Contact Homan if further
information is needed.
Bulletin: P20
Catalog Number Description
PC1M12 Set of 4 Casters
CHS Controls AB
Florettgatan 33
SE-254 67 Helsingborg, Sweden
Tel +46 42 38 61 00, Fax +46 42 38 61 29
chs@chscontrols.se
www.chscontrols.se

1371
Accessories: Mounting Accessories
Legs and Casters
PH (763) 422-2211 • FX (763) 422-2600 • homanonline.com
Subject to change without notice © 2011 Pentair Technical Products
Sanitary Leg Kits
Sanitary leg kits provide space between the enclosure and the
oor for better washdown accessibility. Available with xed or
independently adjustable legs. Adjustable leg shown. Maintains
NEMA Type 4X rating when properly installed on a Homan
enclosure.
Bulletin: WSY
Catalog Number Description
Size L
in./mm
WSASLKSS Adj. Sanitary Leg kit 11.50-12.50
292-318
WSFSLKSS Fixed Sanitary Leg Kit 12.00
305
Stainless Steel Legs
Legs mount to the bottom of a solid base to elevate the enclosure 4
in. (100 mm) from the oor. The legs are made of Type 304 stainless
steel and are appropriate for hose-down applications. Mounting
hardware is included.
Bulletin: P20S
Catalog Number Description
PLEGSS (4) Stainless Steel Legs
CHS Controls AB
Florettgatan 33
SE-254 67 Helsingborg, Sweden
Tel +46 42 38 61 00, Fax +46 42 38 61 29
chs@chscontrols.se
www.chscontrols.se

1372
Accessories: Mounting Accessories
Fasteners
PH (763) 422-2211 • FX (763) 422-2600 • homanonline.com
Subject to change without notice © 2011 Pentair Technical Products
Fasteners
VELCRO® Cable Wrap
Securely holds cable to cable manager and unfastens easily for cable
maintenance. VELCRO® is 0.5-in. (12.7-mm) wide. Available in 8- and
12-in. (203- and 305-mm) lengths in both screw fastener and wrap
styles. M5 self-tapping screw is used on Net Series or PROLINE®
frames.
VELCRO is a trademark of Velcro Industries B.V.
Bulletin: DACCY
Catalog Number Description L (in.) L (mm) Color Pkg. Qty.
ECWTD8B Screw fastener style.
Includes M5 mounting screw.
8.00 203 Black 10
ECWTD12B Screw fastener style.
Includes M5 mounting screw.
12.00 305 Black 10
ECW8B Wrap style 8.00 203 Black 10
ECW8R Wrap style 8.00 203 Red 10
ECW8BL Wrap style 8.00 203 Blue 10
ECW8Y Wrap style 8.00 203 Yellow 10
ECW12B Wrap style 12.00 305 Black 10
ECW12R Wrap style 12.00 305 Red 10
ECW12BL Wrap style 12 305 Blue 10
ECW12Y Wrap style 12 305 Yellow 10
Tamper-Resistant Screws Designed for eld installation on screw cover pull boxes and screw
cover Type 3R enclosures (size 16.00 x 12.00 x 6.00 in. or smaller),
consolets, pushbutton enclosures and Type 12 screw cover wiring
trough. Each package consists of four Type 18-8 stainless steel screws
and four nylon captivating washers. Driver bit must be ordered
separately (functions in any handle or socket capable of holding 1/4-
in. hex insert bits).
Bulletin: A80
Catalog Number Description Pkg. Qty.
ATRSK Tamper-resistant screw (10-32) 4
ATRSDVR Driver bit 1
Screw Packages
Screw Packages are for mounting
rack panels and equipment to rack
angles.
Bulletin: A80, DACCY, X20
Catalog Number Color Description Pkg. Qty.
ES1224 Silver 12-24 x 5/8 in. combo head 20
ES1224250 Silver 12-24 x 5/8 in. combo head 250
ES1224B Black 12-24 x 5/8in. combo head 20
ES1224B250 Black 12-24 x 5/8 in. combo head 250
ASM5 Silver M5 x 20 mm Combo Head 20
ASM6 Silver M6 x 16 mm combo head 20
ASM5T Silver M5 x 12 mm thread-forming Phillips hex head screws 20
ASM6250 Silver M6 x 16 mm combo head 250
AS1032 Silver 10-32 x 5/8 in. combo head 20
AS1032250 Silver 10-32 x 5/8 in. combo head 250
AS1032B Black 10-32 x 5/8 in. combo head 20
Use ASM5T on PROLINE® frame or Net Series extruded holes.
CHS Controls AB
Florettgatan 33
SE-254 67 Helsingborg, Sweden
Tel +46 42 38 61 00, Fax +46 42 38 61 29
chs@chscontrols.se
www.chscontrols.se

1373
Accessories: Mounting Accessories
Fasteners
PH (763) 422-2211 • FX (763) 422-2600 • homanonline.com
Subject to change without notice © 2011 Pentair Technical Products
Cage Nut Package
Cage Nut Packages are for use with
square-hole rack angles. Cage nuts
are plated steel.
Bulletin: DACCY, P20
Catalog Number Color Description Pkg. Qty.
PM5CN Silver M5 cage nut 20
PM6CN Silver M6 cage nut 20
PM6CN250 Silver M6 cage nut 250
P1032CN Silver 10-32 cage nut 20
P1032CN250 Silver 10-32 cage nut 250
P1224CN Silver 12-24 cage nut 20
P1224CN250 Silver 12-24 cage nut 250
Clip Nut Package
Twenty plated clip nuts t all rack-
mounting angles with .281-in. (7-mm)
diameter holes (through-hole type).
Bulletin: A80, X20
Catalog Number Description Pkg. Qty. Fits
AN1032 Clip Nut 10-32 20 .281-diameter mounting holes
ANM5 Clip Nut M5 (Metric) 20 .281-diameter mounting holes
Clamping Nut Package Twenty plated clamping nuts with top-grip nut retainers. Clamping
nuts t into mounting channels that are used on inside walls of
Homan enclosures. Clamping nuts are included with all Homan
accessories that attach to mounting channels. These clamping nuts
can be used for mounting other equipment (brackets, etc.) to the
enclosure walls.
Bulletin: A80
Catalog Number Description Thread
APS1032CN Package of 20 10-32
APS1420CN Package of 20 1/4-20
APS51618CN Package of 20 5/16-18
PROLINE® Fastener Packages
Use to fasten components to the
grid system. PGF Packages include
20 front-loading clip nuts (M6) and
20 combination-drive washer-head
bolts (M6).
Grounding Package is used with the
rectangular holes in the PROLINE®
frame to provide electrical continuity
between the frame and the grid
system. ASM5T Package is used with
PROLINE frames having round holes.
Package includes 20 M5 self-tapping
screws.
Bulletin: DACCY, P20
Catalog Number Description Use in Pkg. Qty.
ASM5T M5 x 12 mm thread-forming Phillips hex head screws Round holes 20
PGFM6 Standard Package - M6 cage nuts and bolts Rectangular holes 20
PGFGM6 Grounding Package - M6 grounding cage nuts and bolts Tapped holes 20
Fastener Package
Kit includes a set of 8 cage nuts and
screws. Used to mount 19-in. rack
equipment to 9-mm square holes in
uprights. Cage nuts are metric (M6).
Screws are pan head Phillips metric
M6x16.
Bulletin: DACCY, DEC1
Catalog Number Color Description
ECNSM6 Silver M6 x 16 pan head posidrive screws.
M6 cage nuts.
CHS Controls AB
Florettgatan 33
SE-254 67 Helsingborg, Sweden
Tel +46 42 38 61 00, Fax +46 42 38 61 29
chs@chscontrols.se
www.chscontrols.se

1374
Accessories: Mounting Accessories
Rack-Mount Accessories
PH (763) 422-2211 • FX (763) 422-2600 • homanonline.com
Subject to change without notice © 2011 Pentair Technical Products
Rack-Mount Ac cessorie s
Guides
14 gauge steel chassis guides mount between two pairs of rack-
mounting angles that have accessory mounting legs. Guides and
mounting hardware are plated. (XSFG mount on one pair of Type RA
rack-mounting angles that have accessory mounting legs.)
Bulletin: P20
Catalog Number
Length
in./mm Rack Units
AG1U5 15.00
381.0
1
AG1U6 21.00
533.4
1
AG1U8 26.00
660.4
1
Slides
Heavy-duty ball bearing, plated three-section Slides are 16-in. (406-
mm) long and allow 17-in. (423-mm) extension. They are attached
to supports that mount between two pairs of rack-mounting angles
that have accessory mounting legs. Mounting hardware is furnished.
Equipment 16.75-in. (425-mm) wide can be mounted between Slide
assemblies installed on 19-in. rack angles. A pair of Slides can support
up to 160 lb. at the extended position when load is distributed evenly
along the 16-in. (406-mm) Slide length. Requires Rack Angle Adapter
Bracket to t PROLINE.
Needs to be used with the Rack Angle Adapter Bracket (PBRAA, PBRAA19
or PBRAA24).
Bulletin: P20
Catalog Number Quantity
A16SL2U 2
CHS Controls AB
Florettgatan 33
SE-254 67 Helsingborg, Sweden
Tel +46 42 38 61 00, Fax +46 42 38 61 29
chs@chscontrols.se
www.chscontrols.se

1375
Accessories: Mounting Accessories
Rack-Mount Accessories
PH (763) 422-2211 • FX (763) 422-2600 • homanonline.com
Subject to change without notice © 2011 Pentair Technical Products
Fan Speed Control, Rack-Mount
Industry Standards
UL 508A Listed; File No. E249700
cUL Listed per CSA C22.2 No. 14; File No. E249700
Application
These Homan Fan Speed Controls provide a means to optimize
airow in a cabinet or rack, balancing air volume requirements
with noise level and power use. The AFANTSC Panel Mount Fan
Speed Control adjusts fan speed automatically based on remote
temperature sensor inputs. The A19FANSC 19-in. Rack-Mount Fan
Speed Control allows manual control over fan speed. Both units are
designed to work with Homan 3-, 6- and 10-in. Compact Cooling
Fans and with 19-in. fan trays, as well as door- and top-mount fan
trays. These fan speed controls are ideal for oces, classrooms and
other acoustic noise-sensitive areas.
Specications
• Continuously variable fan speed control knob with minimum
speed adjustment
• Uses 1 RU rack space
• Steel construction
• Two NEMA 5-15R outlets provide power to fan
• Six-foot (1.83-m) power cord plugs into standard 120V 60 Hz outlet
Finish
AFANTSC: Light-gray polycarbonate control housing
A19FANSC: RAL 9005 black polyester powder paint
Bulletin: DTHRM
Catalog Number Description Application Voltage and Frequency Current Draw Temperature Settings (C) Temperature Settings (F)
A19FANSC 19-in. Rack-Mount Fan Speed Control Fan speed adjusted manually 120V, 60 Hz 4A max. Continously variable Continously variable
Joining Kit
Hardware kit to join two open-frame racks. Made of steel with plated
nish.
Bulletin: DOFRY
Catalog Number Description
EJ2DR Joining Kit, Side-to-Side
Panel Adapter
Adapts 23-in. open frame rack to accept 19-in. equipment. Oset
provides ush mounting surface. Steel with plated nish. Furnished
in pairs.
Bulletin: DACCY
Catalog Number Rack Units
ERB1U2319 1
ERB3U2319 3
ERB5U2319 5
CHS Controls AB
Florettgatan 33
SE-254 67 Helsingborg, Sweden
Tel +46 42 38 61 00, Fax +46 42 38 61 29
chs@chscontrols.se
www.chscontrols.se

1376
Accessories: Mounting Accessories
Rack-Mount Accessories
PH (763) 422-2211 • FX (763) 422-2600 • homanonline.com
Subject to change without notice © 2011 Pentair Technical Products
Rack Unit Label
Self-adhesive clear Mylar™ label
with white numbers enables
numbering along sides of open
frame racks or rack angles. Numbers
spaced one rack unit apart. Can be
used for bottom-up or top-down
numbering of rack units to simplify
equipment installation. Each label
provided in two pieces (numbers
1-29 and 30-58) for easier installation.
Two labels per catalog number. Label
shown mounted on rack angle.
Mylar is a registered trademark of
DuPont Tejin Films.
Bulletin: DOFRY
Catalog Number
Installed Length
in./mm
Width
in./mm
ARULABEL 101.50
2578
.50
13
Mobile Base for Open Frame Racks
Models for 19-in. 2- and 4-Post
Open Frame Racks. Includes four
non-locking casters. Will also accept
standard levelers. Order catalog
number PLM12 separately. The rack
mounts on the base to provide
greater stability with mobility.
Made of steel with RAL 9005 black
polyester powder paint nish.
Mounting hardware included.
Bulletin: DOFRY
Catalog Number Fits
A19MB600 2-post open-frame racks
A19MB1000 4-post open-frame racks with depth adjustable
between 17.7- and 29.5-in. (450- and 750-mm) in 0.98-in. (25-mm) increments
CHS Controls AB
Florettgatan 33
SE-254 67 Helsingborg, Sweden
Tel +46 42 38 61 00, Fax +46 42 38 61 29
chs@chscontrols.se
www.chscontrols.se

1377
Accessories: Mounting Accessories
Rack-Mount Accessories
PH (763) 422-2211 • FX (763) 422-2600 • homanonline.com
Subject to change without notice © 2011 Pentair Technical Products
19-in. Rack-Mount/Desktop Case, Type 1
Industry Standards
NEMA Type 1
IEC 60529, IP20
Exterior Dimensions
EIA 310-D / IEC 297-1
DIN 41494 Part 1
Application
Desktop cases house circuit boards and other electronic equipment
in a rigid framework with easy front and rear access. Rack cases are
19-in. rack mountable with integral mounting provided in the front
bezel.
Features
• Removable top and bottom covers attach directly to case
framework for maintenance convenience
• Bottom cover has multiple rows of holes for ventilation
• Front bezel includes mounting provisions for 19-in. rack mounting
as well as mounting for front panel options for application
exibility
• Top and bottom of framework have mounting provisions for
optional support rails for application exibility. Mounting holes are
spaced on 10-mm centers front to back.
• Case framework is assembled for quick installation. Top cover,
bottom cover, anti-skid feet and mounting hardware are included.
• Mounting hardware for optional front and rear panels are included
with case for installation convenience
Specications
• One-piece aluminum die cast front bezel and rear bezel are
connected front-to-back with aluminum extrusions to form a rigid
structural framework
• Sides on 3U- and 4U-tall cases are the aluminum front-to-back
extrusions. The 6U-tall case has two aluminum extrusions with a
steel middle panel on each side.
• Covers are 1-mm steel and have grounding provisions
Finish
Framework has an RAL 7030 stone-gray textured nish. Top and
bottom covers have an RAL 7035 light-gray textured nish on the
outside and a plated nish on the inside.
Bulletin: DEC1
Standard Product
Catalog Number AxBxC mm/in.
E
mm/in.
F
mm/in.
G
mm/in.
H
mm/in. Rack Units
ERC3U4837 133 x 483 x 375
5.20 x 19.00 x 14.80
131
5.14
103
4.04
57
2.25
110
4.33
3
ERC4U4843 177 x 483 x 435
7.00 x 19.00 x 17.10
175
6.89
147
5.77
102
4.00
155
6.08
4
ERC6U4843 266 x 483 x 435
10.50 x 19.00 x 17.10
264
10.39
235
9.27
190
7.50
243
9.58
6
CHS Controls AB
Florettgatan 33
SE-254 67 Helsingborg, Sweden
Tel +46 42 38 61 00, Fax +46 42 38 61 29
chs@chscontrols.se
www.chscontrols.se

1378
Accessories: Mounting Accessories
Rack-Mount Accessories
PH (763) 422-2211 • FX (763) 422-2600 • homanonline.com
Subject to change without notice © 2011 Pentair Technical Products
Swing-Out Rack Mounting Frames
Full-length 10 gauge swing-out rack mounting frames are available
for mounting 19-in. (483-mm) rack mounting equipment. The
frame pivots within the enclosure to allow access to the back of the
mounted equipment. The frames can be installed in 72.00-in. (1829-
mm) and 90.00-in. (2286-mm) high enclosures that are 30.00-in. (762-
mm) or 36.00-in. (914-mm) wide. They can be installed in 60.00-in.
(1524-mm) or 72.00-in. (1829-mm) wide enclosures if a center panel
support is used. Mounting holes are tapped with #10-32 threads
spaced per EIA standard. The design features smooth operation
and secure positioning anywhere along the horizontal mounting
channels. Frame swings from the left side.
All frames are white and furnished with plated mounting hardware.
Bulletin: A80
Catalog Number
Fits Enclosure
Size A x B
in./mm
T
in./mm
M
in./mm
D max
in./mm
Number
of Units
A7230SOF19 72.06 x 30.06
1830 x 764
57.88
1470
9.09
231
16.25
413
33
A7236SOF19 72.06 x 36.06
1830 x 916
57.88
1470
9.09
231
24.25
616
33
A9036SOF19 90.06 x 36.06
2287 x 916
75.28
1915
9.34
237
24.25
616
43
One unit equals 1.75 inches (44mm).
CHS Controls AB
Florettgatan 33
SE-254 67 Helsingborg, Sweden
Tel +46 42 38 61 00, Fax +46 42 38 61 29
chs@chscontrols.se
www.chscontrols.se

1379
Accessories: Mounting Accessories
Rack-Mount Accessories
PH (763) 422-2211 • FX (763) 422-2600 • homanonline.com
Subject to change without notice © 2011 Pentair Technical Products
19-in. and 23-in. Rack Angles
Made of 14 gauge steel with square
holes or 12 gauge steel with 10-32
tapped holes. Provides 19- or 23-in.
rack spacing depending on frame
width. Finished with at black RAL
9005 polyester powder paint or
plated. Furnished in pairs.
Bulletin: DNCY, DWDH1
Catalog Number Rack Spacing Hole Type Finish Use With
Fits Frame
Height
Fits Frame
Width
Rack
Units L (mm) L (in.)
ERA197THLN 19 in. Square Black Networking Cabinet - SOHO 700mm 600mm 11 492 19.38
ERA197TPLN 19 in. Tapped Black Networking Cabinet - SOHO 700mm 600mm 11 492 19.38
ERA1921TPL 19 in. Tapped Black Seismic Cabinet 2100mm 700mm 45 2003 78.87
ERA192321TPL 19 & 23 in. Tapped Black Seismic Cabinet 2100mm 800mm 45 2003 78.87
ERA1910TPL 19 in. Tapped Black Network PC Cabinet Bottom Section — 19 848 33.37
Rack Mounting Angles - U Style (Type RA)
For Free-Stand Enclosures, Type 12 (Bulletin A30), Free-Stand Enclosures, Type 4 (Bulletin A4L) and One-Door Free-Stand Fiberglass
Enclosures, Type 4X (Bulletin A17).
Pairs of full-length rack mounting angles are available for mounting 19-in. (483-mm) and 24-in. (610-mm) rack-mounted equipment.
Type RA rack mounting angles are 14 gauge steel with mounting holes .281 in. (7 mm) in diameter and spaced per EIA standard RS-310-D
universal spacing. Use clip nut package AN1032 to provide tapped holes at desired locations.
Angles and mounting hardware are plated. All mounting hardware is furnished. Includes two full-length angles.
Bulletin: A80
Catalog Number
Fits Enclosure
A x B
in./mm
K
in./mm
L
in./mm
M
in./mm
T
in./mm
V
in./mm
For Rack
Size
in./mm
Number
of Units
A60RA19TH 60.00 x 24.00
60 x 24
3.78
96
49.00
1245
7.78
198
1.95
50
1.89
48
19.00
483
28
A72RA19TH 72.00 x 24.00
1829 x 610
3.66
93
61.25
1556
7.66
195
1.95
50
1.89
48
19.00
483
35
A72RA24TH 72.00 x 30.00
1829 x 762
3.66
93
61.25
1556
7.66
195
2.45
62
2.39
61
24.00
610
35
A90RA19TH 90.00 x 24.00
2286 x 610
3.91
99
78.75
2000
7.91
201
1.95
50
1.89
48
19.00
483
45
One unit equals 1.75 inches (44 mm).
CHS Controls AB
Florettgatan 33
SE-254 67 Helsingborg, Sweden
Tel +46 42 38 61 00, Fax +46 42 38 61 29
chs@chscontrols.se
www.chscontrols.se

1380
Accessories: Mounting Accessories
Rack-Mount Accessories
PH (763) 422-2211 • FX (763) 422-2600 • homanonline.com
Subject to change without notice © 2011 Pentair Technical Products
CHS Controls AB
Florettgatan 33
SE-254 67 Helsingborg, Sweden
Tel +46 42 38 61 00, Fax +46 42 38 61 29
chs@chscontrols.se
www.chscontrols.se

1381
Accessories: Mounting Accessories
Rack-Mount Accessories
PH (763) 422-2211 • FX (763) 422-2600 • homanonline.com
Subject to change without notice © 2011 Pentair Technical Products
Rack Mounting Angles - L Style (Type RP)
For Free-Stand Enclosures, Type 12 (Bulletin A30), Free-Stand
Enclosures, Type 4 (Bulletin A4L) and One-Door Free-Stand Fiberglass
Enclosures, Type 4X (Bulletin A17). Pairs of full-length or half-length
rack mounting angles are available for mounting 19-in. (483-mm) and
24-in. (610-mm) rack-mounted equipment. Type RP rack mounting
angles are 10 gauge steel with mounting holes tapped #10-32 thread
and spaced per EIA standard RS-310-D universal spacing. Angles and
mounting hardware are plated. All mounting hardware is furnished.
Bulletin: A80
Catalog Number Description
Fits Enclosure
A x B
in./mm
For Rack
Size
in./mm
K
in./mm
L
in./mm
M
in./mm
T
in./mm
Number
of Units
A60RP24F5 Two full-length angles 60.00 x 24.00
1524 x 610
19.00
483
3.78
96
49.00
1245
7.78
198
1.94
49
28
A60RP24F6 Two half-length angles 60.00 x 24.00
1524 x 610
19.00
483
3.59
91
26.25
667
7.59
193
1.94
49
15
A72RP24F5 Two full-length angles 72.00 x 24.00
1829 x 610
19.00
483
3.66
93
61.25
1556
7.66
195
1.94
49
35
A72RP24F6 Two half-length angles 72.00 x 24.00
1829 x 610
19.00
483
3.97
101
31.50
800
7.97
202
1.94
49
18
A72RP30F5 Two full-length angles 72.00 x 30.00
1829 x 762
24.00
610
3.66
93
61.25
1556
7.66
195
2.44
62
35
A72RP30F6 Two half-length angles 72.00 x 30.00
1829 x 762
24.00
610
3.97
101
31.50
800
7.97
202
2.44
62
18
A90RP24F5 Two full-length angles 90.00 x 24.00
2286 x 610
19.00
483
3.91
99
78.75
2000
7.91
201
1.94
49
45
A90RP24F6 Two half-length angles 90.00 x 24.00
2286 x 610
19.00
483
4.09
104
40.25
1022
8.09
205
1.94
49
23
One unit equals 1.75 inches (44 mm).
CHS Controls AB
Florettgatan 33
SE-254 67 Helsingborg, Sweden
Tel +46 42 38 61 00, Fax +46 42 38 61 29
chs@chscontrols.se
www.chscontrols.se

1382
Accessories: Mounting Accessories
Rack-Mount Accessories
PH (763) 422-2211 • FX (763) 422-2600 • homanonline.com
Subject to change without notice © 2011 Pentair Technical Products
CHS Controls AB
Florettgatan 33
SE-254 67 Helsingborg, Sweden
Tel +46 42 38 61 00, Fax +46 42 38 61 29
chs@chscontrols.se
www.chscontrols.se

1383
Accessories: Mounting Accessories
Rack-Mount Accessories
PH (763) 422-2211 • FX (763) 422-2600 • homanonline.com
Subject to change without notice © 2011 Pentair Technical Products
Rack Mounting Angle Kit - L Style
Designed for mounting 19-in. (483-mm) rack-mount equipment in
standard 24-in. (610-mm) wide one-door, wall-mount Type 4 and
12 enclosures. Heavy 10 gauge steel angles are tapped with #10-32
threads spaced to meet EIA RS-310-D. To install, drill small holes in the
sides of the enclosure and bolt angles in place.
All mounting hardware and instructions are furnished. Sealing
washers also are provided to maintain original enclosure standards
rating after installation. Rack angles are zinc-plated. External screws
are stainless steel. Special sizes, materials and nishes are available
on custom order.
Bulletin: A80
Catalog Number Description
For Enclosure
Size A x B
in./mm
L
in./mm
N
in./mm
Number
of Units
ARAK24 Two Angles 24.00 x 24.00
610 x 610
23.75
603
1.62
41
12
ARAK30 Two Angles 30.00 x 24.00
762 x 610
29.75
756
2.00
51
15
ARAK36 Two Angles 36.00 x 24.00
914 x 610
35.75
908
1.50
38
19
One unit equals 1.75 inches (44 mm).
CHS Controls AB
Florettgatan 33
SE-254 67 Helsingborg, Sweden
Tel +46 42 38 61 00, Fax +46 42 38 61 29
chs@chscontrols.se
www.chscontrols.se

1384
Accessories: INTERSAFE® Data Interface Ports
INTERSAFE® Data Interface Ports, Type 4/4X/12
PH (763) 422-2211 • FX (763) 422-2600 • homanonline.com
Subject to change without notice © 2011 Pentair Technical Products
INTERSAFE® Da ta Interfa ce Ports
INTERSAFE® Da ta Interfa ce Ports, Type 4 /4X/12
INTERSAFE® Data Interface Ports, Type 4/4X/12
Industry Standards
Mild Steel Painted Ports
UL 508A Component Recognized; Type 4, 12; File No. E61997
cUL Component Recognized per CSA C22.2 No 94; Type 4, 12;
File No. E61997
NEMA/EEMAC Type 4, 12
IEC 60529, IP66
Stainless Steel Ports
UL 508A Component Recognized; Type 4, 4X, 12; File No. E61997
cUL Component Recognized per CSA C22.2 No 94; Type 4, 4X,
12; File No. E61997
NEMA/EEMAC Type 4, 4X, 12
IEC 60529, IP66
Clear-Cover (polycarbonate) Ports
UL 508A Component Recognized; Type 4X, 12; File No. E61997
cUL Component Recognized per CSA C22.2 No 94; Type 4, 4X,
12; File No. E61997
IEC 60529, IP66
Application
INTERSAFE® Data Interface Ports are mounted on an enclosure to
allow programming access to devices inside without opening the
enclosure door.
Features
• Ready to use
•
Frame and door assembly with aluminum back plate included with
all models; 120 VAC receptacles and programming connectors are
mounted to the plate in 72 standard congurations
• All standard congurations include a GFCI or standard duplex
receptacle with a 5-A circuit breaker for added safety
• Door gasket (between the door and plate assemblies) and plate
gasket (between the plate assembly and the enclosure) together
provide a tight seal
• Template provided for accurate enclosure cutout dimensions
• Quarter-turn latch with screwdriver slot and padlock hasp on all
steel and stainless steel door models for convenience and security
• Quarter-turn latch with screwdriver slot on polycarbonate models
• Disk drive enclosure provides access to one or two customer-
supplied disk drives without opening the cabinet
•
Modications and customization available to accommodate a wide
variety of additional connectors
Specications
• Door assembly and frame manufactured from 16 gauge steel or
stainless steel
• Clear-cover models have a molded polycarbonate door
• Steel and stainless steel doors are welded and ground
• Back plate is aluminum
Finish
• RAL 9005 black ne-textured polyester powder coating—mild
steel door assemblies
• Brushed nish—stainless steel door assemblies
• Brushed nish—aluminum back plates
Modication and Customization
Homan excels at modifying and customizing products to your
specications. Contact your local Homan sales oce or distributor
for complete information.
CHS Controls AB
Florettgatan 33
SE-254 67 Helsingborg, Sweden
Tel +46 42 38 61 00, Fax +46 42 38 61 29
chs@chscontrols.se
www.chscontrols.se

1385
Accessories: INTERSAFE® Data Interface Ports
INTERSAFE® Data Interface Ports, Type 4/4X/12
PH (763) 422-2211 • FX (763) 422-2600 • homanonline.com
Subject to change without notice © 2011 Pentair Technical Products
INTERSAFE® Data Ports for ControlNet Protocol
Left-hand image shows front view, GFCI Receptacle Models. Right-
hand image shows Front front view, Duplex Receptacle Models. Rear
view with and without terminal cover are below the table.
Bulletin: A70E
Catalog Number Material Conguration Primary Connector/ Termination Secondary Connector/ Termination Supports Devices Sold by the Following Manufacturers
HGF5CN Steel - 120 VAC GFCI receptacle
- Shielded RJ45
- 5-amp circuit breaker
- Shielded RJ45
- 10-ft. shielded cable with male RJ45
— Allen-Bradley
HGF5CNSS Stainless Steel - 120 VAC GFCI receptacle
- Shielded RJ45
- 5-amp circuit breaker
- Shielded RJ45
- 10-ft. shielded cable with male RJ45
— Allen-Bradley
HGF5CNCC Composite - 120 VAC GFCI receptacle
- Shielded RJ45
- 5-amp circuit breaker
- Shielded RJ45
- 10-ft. shielded cable with male RJ45
— Allen-Bradley
HDP5CN Steel - 120 VAC duplex receptacle
- Shielded RJ45
- 5-amp circuit breaker
- Shielded RJ45
- 10-ft. shielded cable with male RJ45
— Allen-Bradley
HDP5CNSS Stainless Steel - 120 VAC duplex receptacle
- Shielded RJ45
- 5-amp circuit breaker
- Shielded RJ45
- 10-ft. shielded cable with male RJ45
— Allen-Bradley
HDP5CNCC Composite - 120 VAC duplex receptacle
- Shielded RJ45
- 5-amp circuit breaker
- Shielded RJ45
- 10-ft. shielded cable with male RJ45
— Allen-Bradley
CHS Controls AB
Tel +46 42 38 61 00, Fax +46 42 38 61 29
chs@chscontrols.se www.chscontrols.se

1386
Accessories: INTERSAFE® Data Interface Ports
INTERSAFE® Data Interface Ports, Type 4/4X/12
PH (763) 422-2211 • FX (763) 422-2600 • homanonline.com
Subject to change without notice © 2011 Pentair Technical Products
INTERSAFE® Data Interface Ports for Data Highway Plus Protocol
Left-hand image shows front view, GFCI Receptacle Models. Right-
hand image shows front view, Duplex Receptacle Models. Rear view
with and without terminal cover are below the table.
Bulletin: A70E
Catalog Number Material Conguration Primary Connector/ Termination Secondary Connector/ Termination
Supports Devices Sold by
the Following Manufacturers
HGF58MDH Steel - 120 VAC GFCI receptacle
- 8-pin mini DIN
- DB9F
- 5-amp circuit breaker
Female 8-pin mini DIN DB9F terminal block Allen-Bradley
HGF58MDHSS Stainless Steel - 120 VAC GFCI receptacle
- 8-pin mini DIN
- DB9F
- 5-amp circuit breaker
Female 8-pin mini DIN DB9F terminal block Allen-Bradley
HGF58MDHCC Composite - 120 VAC GFCI receptacle
- 8-pin mini DIN
- DB9F
- 5-amp circuit breaker
Female 8-pin mini DIN DB9F terminal block Allen-Bradley
HDP58MDH Steel - 120 VAC duplex receptacle
- 8-pin mini DIN
- DB9F
- 5-amp circuit breaker
Female 8-pin mini DIN DB9F terminal block Allen-Bradley
HDP58MDHSS Stainless Steel - 120 VAC duplex receptacle
- 8-pin mini DIN
- DB9F
- 5-amp circuit breaker
Female 8-pin mini DIN DB9F terminal block Allen-Bradley
HDP58MDHCC Composite - 120 VAC duplex receptacle
- 8-pin mini DIN
- DB9F
- 5-amp circuit breaker
Female 8-pin mini DIN DB9F terminal block Allen-Bradley
CHS Controls AB
Tel +46 42 38 61 00, Fax +46 42 38 61 29
chs@chscontrols.se www.chscontrols.se

1387
Accessories: INTERSAFE® Data Interface Ports
INTERSAFE® Data Interface Ports, Type 4/4X/12
PH (763) 422-2211 • FX (763) 422-2600 • homanonline.com
Subject to change without notice © 2011 Pentair Technical Products
INTERSAFE® Data Interface Ports for DeviceNet Protocol
Left-hand image shows front view, GFCI Receptacle Models. Right-
hand image shows front view, Duplex Receptacle Models. Rear view
with and without terminal cover are below the table.
Bulletin: A70E
Catalog Number Material Conguration Primary Connector/ Termination Secondary Connector/ Termination
Supports Devices Sold by
the Following Manufacturers
HGF5DN5P Steel - 120 VAC GFCI receptacle
- 5-pin Phoenix Style
- 5-pin mini receptacle
- 5-amp circuit breaker
5-pin Phoenix Style terminal block 5-pin mini receptacle terminal block Allen-Bradley
GE Fanuc
HGF5DN5PSS Stainless Steel - 120 VAC GFCI receptacle
- 5-pin Phoenix Style
- 5-pin mini receptacle
- 5-amp circuit breaker
5-pin Phoenix Style terminal block 5-pin mini receptacle terminal block Allen-Bradley
GE Fanuc
HGF5DN5PCC Composite - 120 VAC GFCI receptacle
- 5-pin Phoenix Style
- 5-pin mini receptacle
- 5-amp circuit breaker
5-pin Phoenix Style terminal block 5-pin mini receptacle terminal block Allen-Bradley
GE Fanuc
HDP5DN5P Steel - 120 VAC duplex receptacle
- 5-pin Phoenix Style
- 5-pin mini receptacle
- 5-amp circuit breaker
5-pin Phoenix Style terminal block 5-pin mini receptacle terminal block Allen-Bradley
GE Fanuc
HDP5DN5PSS Stainless Steel - 120 VAC duplex receptacle
- 5-pin Phoenix Style
- 5-pin mini receptacle
- 5-amp circuit breaker
5-pin Phoenix Style terminal block 5-pin mini receptacle terminal block Allen-Bradley
GE Fanuc
HDP5DN5PCC Composite - 120 VAC duplex receptacle
- 5-pin Phoenix Style
- 5-pin mini receptacle
- 5-amp circuit breaker
5-pin Phoenix Style terminal block 5-pin mini receptacle terminal block Allen-Bradley
GE Fanuc
CHS Controls AB
Tel +46 42 38 61 00, Fax +46 42 38 61 29
chs@chscontrols.se www.chscontrols.se

1388
Accessories: INTERSAFE® Data Interface Ports
INTERSAFE® Data Interface Ports, Type 4/4X/12
PH (763) 422-2211 • FX (763) 422-2600 • homanonline.com
Subject to change without notice © 2011 Pentair Technical Products
INTERSAFE® Data Interface Ports for DH+, ModBus Plus, Ethernet Protocol
Left-hand image shows front view, GFCI Receptacle Models. Right-
hand image shows front view, Duplex Receptacle Models. Rear view
with and without terminal cover are below the table.
Bulletin: A70E
Catalog Number Material Conguration Primary Connector/ Termination Secondary Connector/ Termination
Supports Devices Sold by
the Following Manufacturers
HGF5ETHDH Steel - 120 VAC GFCI receptacle
- RJ45
- DB9F
- 5-amp circuit breaker
DB9F terminal block - RJ45
- 10-ft. cable with male RJ45
Allen-Bradley
Group Schneider
Computer peripherals
HGF5ETHDHSS Stainless Steel - 120 VAC GFCI receptacle
- RJ45
- DB9F
- 5-amp circuit breaker
DB9F terminal block - RJ45
- 10-ft. cable with male RJ45
Allen-Bradley
Group Schneider
Computer peripherals
HGF5ETHDHCC Composite - 120 VAC GFCI receptacle
- RJ45
- DB9F
- 5-amp circuit breaker
DB9F terminal block - RJ45
- 10-ft. cable with male RJ45
Allen-Bradley
Group Schneider
Computer peripherals
HDP5ETHDH Steel - 120 VAC duplex receptacle
- RJ45
- DB9F
- 5-amp circuit breaker
DB9F terminal block - RJ45
- 10-ft. cable with male RJ45
Allen-Bradley
Group Schneider
Computer peripherals
HDP5ETHDHSS Stainless Steel - 120 VAC duplex receptacle
- RJ45
- DB9F
- 5-amp circuit breaker
DB9F terminal block - RJ45
- 10-ft. cable with male RJ45
Allen-Bradley
Group Schneider
Computer peripherals
HDP5ETHDHCC Composite - 120 VAC duplex receptacle
- RJ45
- DB9F
- 5-amp circuit breaker
DB9F terminal block - RJ45
- 10-ft. cable with male RJ45
Allen-Bradley
Group Schneider
Computer peripherals
CHS Controls AB
Tel +46 42 38 61 00, Fax +46 42 38 61 29
chs@chscontrols.se www.chscontrols.se

1389
Accessories: INTERSAFE® Data Interface Ports
INTERSAFE® Data Interface Ports, Type 4/4X/12
PH (763) 422-2211 • FX (763) 422-2600 • homanonline.com
Subject to change without notice © 2011 Pentair Technical Products
INTERSAFE® Data Interface Ports for Ethernet Protocol
Left-hand image shows front view, GFCI Receptacle Models. Right-
hand image shows front view, Duplex Receptacle Models. Rear view
with and without terminal cover are below the table.
Bulletin: A70E
Catalog Number Material Conguration Primary Connector/ Termination Secondary Connector/ Termination
Supports Devices Sold by
the Following Manufacturers
HGF5ETHETH Steel - 120 VAC GFCI receptacle
- RJ45
- RJ45
- 5-amp circuit breaker
- RJ45
- 10-ft. cable
- RJ45
- 10-ft. cable
Computer peripherals
HGF5ETHETHSS Stainless Steel - 120 VAC GFCI receptacle
- RJ45
- RJ45
- 5-amp circuit breaker
- RJ45
- 10-ft. cable
- RJ45
- 10-ft. cable
Computer peripherals
HGF5ETHETHCC Composite - 120 VAC GFCI receptacle
- RJ45
- RJ45
- 5-amp circuit breaker
- RJ45
- 10-ft. cable
- RJ45
- 10-ft. cable
Computer peripherals
HDP5ETHETH Steel - 120 VAC duplex receptacle
- RJ45
- RJ45
- 5-amp circuit breaker
- RJ45
- 10-ft. cable
- RJ45
- 10-ft. cable
Computer peripherals
HDP5ETHETHSS Stainless Steel - 120 VAC duplex receptacle
- RJ45
- RJ45
- 5-amp circuit breaker
- RJ45
- 10-ft. cable
- RJ45
- 10-ft. cable
Computer peripherals
HDP5ETHETHCC Composite - 120 VAC duplex receptacle
- RJ45
- RJ45
- 5-amp circuit breaker
- RJ45
- 10-ft. cable
- RJ45
- 10-ft. cable
Computer peripherals
CHS Controls AB
Tel +46 42 38 61 00, Fax +46 42 38 61 29
chs@chscontrols.se www.chscontrols.se

1390
Accessories: INTERSAFE® Data Interface Ports
INTERSAFE® Data Interface Ports, Type 4/4X/12
PH (763) 422-2211 • FX (763) 422-2600 • homanonline.com
Subject to change without notice © 2011 Pentair Technical Products
INTERSAFE® Data Interface Ports for Ethernet/ProNet Protocol
Left-hand image shows front view, GFCI Receptacle Models. Right-
hand image shows front view, Duplex Receptacle Models. Rear view
with and without terminal cover are below the table.
Bulletin: A70E
Catalog Number Material Conguration Conguration Secondary Connector/ Termination
Supports Devices Sold by
the Following Manufacturers
HGF5ETH Steel - 120 VAC GFCI receptacle
- RJ45
- 5-amp circuit breaker
- RJ45
- 10-ft. cable
--- Allen-Bradley
GE Fanuc
Groupe Schneider
Siemens
Computer peripherals
HGF5ETHSS Stainless Steel - 120 VAC GFCI receptacle
- RJ45
- 5-amp circuit breaker
- RJ45
- 10-ft. cable
--- Allen-Bradley
GE Fanuc
Groupe Schneider
Siemens
Computer peripherals
HGF5ETHCC Composite - 120 VAC GFCI receptacle
- RJ45
- 5-amp circuit breaker
- RJ45
- 10-ft. cable
--- Allen-Bradley
GE Fanuc
Groupe Schneider
Siemens
Computer peripherals
HDP5ETH Steel - 120 VAC duplex receptacle
- RJ45
- 5-amp circuit breaker
- RJ45
- 10-ft. cable
--- Allen-Bradley
GE Fanuc
Groupe Schneider
Siemens
Computer peripherals
HDP5ETHSS Stainless Steel - 120 VAC duplex receptacle
- RJ45
- 5-amp circuit breaker
- RJ45
- 10-ft. cable
--- Allen-Bradley
GE Fanuc
Groupe Schneider
Siemens
Computer peripherals
HDP5ETHCC Composite - 120 VAC duplex receptacle
- RJ45
- 5-amp circuit breaker
- RJ45
- 10-ft. cable
--- Allen-Bradley
GE Fanuc
Groupe Schneider
Siemens
Computer peripherals
CHS Controls AB
Tel +46 42 38 61 00, Fax +46 42 38 61 29
chs@chscontrols.se www.chscontrols.se

1391
Accessories: INTERSAFE® Data Interface Ports
INTERSAFE® Data Interface Ports, Type 4/4X/12
PH (763) 422-2211 • FX (763) 422-2600 • homanonline.com
Subject to change without notice © 2011 Pentair Technical Products
INTERSAFE® Data Interface Ports for Genius Protocol
Left-hand image shows front view, GFCI Receptacle Models. Right-
hand image shows front view, Duplex Receptacle Models. Rear view
with and without terminal cover are below the table.
Bulletin: A70E
Catalog Number Material Conguration Primary Connector/ Termination Secondary Connector/ Termination
Supports Devices Sold by
the Following Manufacturers
HGF5GEG Steel - 120 VAC GFCI receptacle
- DB9M
- 5-amp circuit breaker
- DB9M
- 10-ft. cable
--- GE Fanuc
HGF5GEGSS Stainless Steel - 120 VAC GFCI receptacle
- DB9M
- 5-amp circuit breaker
- DB9M
- 10-ft. cable
--- GE Fanuc
HGF5GEGCC Composite - 120 VAC GFCI receptacle
- DB9M
- 5-amp circuit breaker
- DB9M
- 10-ft. cable
--- GE Fanuc
HDP5GEG Steel - 120 VAC duplex receptacle
- DB9M
- 5-amp circuit breaker
- DB9M
- 10-ft. cable
--- GE Fanuc
HDP5GEGSS Stainless Steel - 120 VAC duplex receptacle
- DB9M
- 5-amp circuit breaker
- DB9M
- 10-ft. cable
--- GE Fanuc
HDP5GEGCC Composite - 120 VAC duplex receptacle
- DB9M
- 5-amp circuit breaker
- DB9M
- 10-ft. cable
--- GE Fanuc
CHS Controls AB
Tel +46 42 38 61 00, Fax +46 42 38 61 29
chs@chscontrols.se www.chscontrols.se

1392
Accessories: INTERSAFE® Data Interface Ports
INTERSAFE® Data Interface Ports, Type 4/4X/12
PH (763) 422-2211 • FX (763) 422-2600 • homanonline.com
Subject to change without notice © 2011 Pentair Technical Products
INTERSAFE® Data Interface Ports for Micro Protocol
Left-hand image shows front view, GFCI Receptacle Models. Right-
hand image shows front view, Duplex Receptacle Models. Rear view
with and without terminal cover are below the table.
Bulletin: A70E
Catalog Number Material Conguration Primary Connector/ Termination Secondary Connector/ Termination
Supports Devices Sold by
the Following Manufacturers
HGF5TMM Steel - 120 VAC GFCI receptacle
- DB9M
- 5-amp circuit breaker
- DB9M
- 10-ft. cable
--- Groupe Schneider
HGF5TMMSS Stainless Steel - 120 VAC GFCI receptacle
- DB9M
- 5-amp circuit breaker
- DB9M
- 10-ft. cable
--- Groupe Schneider
HGF5TMMCC Composite - 120 VAC GFCI receptacle
- DB9M
- 5-amp circuit breaker
- DB9M
- 10-ft. cable
--- Groupe Schneider
HDP5TMM Steel - 120 VAC duplex receptacle
- DB9M
- 5-amp circuit breaker
- DB9M
- 10-ft. cable
--- Groupe Schneider
HDP5TMMSS Stainless Steel - 120 VAC duplex receptacle
- DB9M
- 5-amp circuit breaker
- DB9M
- 10-ft. cable
--- Groupe Schneider
HDP5TMMCC Composite - 120 VAC duplex receptacle
- DB9M
- 5-amp circuit breaker
- DB9M
- 10-ft. cable
--- Groupe Schneider
CHS Controls AB
Tel +46 42 38 61 00, Fax +46 42 38 61 29
chs@chscontrols.se www.chscontrols.se

1393
Accessories: INTERSAFE® Data Interface Ports
INTERSAFE® Data Interface Ports, Type 4/4X/12
PH (763) 422-2211 • FX (763) 422-2600 • homanonline.com
Subject to change without notice © 2011 Pentair Technical Products
INTERSAFE® Data Interface Ports for Modbus Protocol
Left-hand image shows front view, GFCI Receptacle Models. Right-
hand image shows front view, Duplex Receptacle Models. Rear view
with and without terminal cover are below the table.
Bulletin: A70E
Catalog Number Material Conguration Primary Connector/ Termination Secondary Connector/ Termination
Supports Devices Sold by
the Following Manufacturers
HGF5TMB Steel - 120 VAC GFCI receptacle
- DB9M
- 5-amp circuit breaker
-DB9M
- 10-ft. cable
--- Groupe Schneider
HGF5TMBSS Stainless Steel - 120 VAC GFCI receptacle
- DB9M
- 5-amp circuit breaker
-DB9M
- 10-ft. cable
--- Groupe Schneider
HGF5TMBCC Composite - 120 VAC GFCI receptacle
- DB9M
- 5-amp circuit breaker
-DB9M
- 10-ft. cable
--- Groupe Schneider
HDP5TMB Steel - 120 VAC duplex receptacle
- DB9M
- 5-amp circuit breaker
-DB9M
- 10-ft. cable
--- Groupe Schneider
HDP5TMBSS Stainless Steel - 120 VAC duplex receptacle
- DB9M
- 5-amp circuit breaker
-DB9M
- 10-ft. cable
--- Groupe Schneider
HDP5TMBCC Composite - 120 VAC duplex receptacle
- DB9M
- 5-amp circuit breaker
-DB9M
- 10-ft. cable
--- Groupe Schneider
CHS Controls AB
Tel +46 42 38 61 00, Fax +46 42 38 61 29
chs@chscontrols.se www.chscontrols.se

1394
Accessories: INTERSAFE® Data Interface Ports
INTERSAFE® Data Interface Ports, Type 4/4X/12
PH (763) 422-2211 • FX (763) 422-2600 • homanonline.com
Subject to change without notice © 2011 Pentair Technical Products
INTERSAFE® Data Interface Ports for Probus Protocol
Left-hand image shows front view, GFCI Receptacle Models. Right-
hand image shows front view, Duplex Receptacle Models. Rear view
with and without terminal cover are below the table.
Bulletin: A70E
Catalog Number Material Conguration Primary Connector/ Termination Secondary Connector/ Termination
Supports Devices Sold by
the Following Manufacturers
HGF5PB Steel - 120 VAC GFCI receptacle
- 9-pin Probus
- 5-amp circuit breaker
9-pin Probus terminal --- Allen-Bradley
GE Fanuc
Siemens
HGF5PBSS Stainless Steel - 120 VAC GFCI receptacle
- 9-pin Probus
- 5-amp circuit breaker
9-pin Probus terminal --- Allen-Bradley
GE Fanuc
Siemens
HGF5PBCC Composite - 120 VAC GFCI receptacle
- 9-pin Probus
- 5-amp circuit breaker
9-pin Probus terminal --- Allen-Bradley
GE Fanuc
Siemens
HDP5PB Steel - 120 VAC duplex receptacle
- 9-pin Probus
- 5-amp circuit breaker
9-pin Probus terminal --- Allen-Bradley
GE Fanuc
Siemens
HDP5PBSS Stainless Steel - 120 VAC duplex receptacle
- 9-pin Probus
- 5-amp circuit breaker
9-pin Probus terminal --- Allen-Bradley
GE Fanuc
Siemens
HDP5PBCC Composite - 120 VAC duplex receptacle
- 9-pin Probus
- 5-amp circuit breaker
9-pin Probus terminal --- Allen-Bradley
GE Fanuc
Siemens
CHS Controls AB
Florettgatan 33
SE-254 67 Helsingborg, Sweden
Tel +46 42 38 61 00, Fax +46 42 38 61 29
chs@chscontrols.se
www.chscontrols.se

1395
Accessories: INTERSAFE® Data Interface Ports
INTERSAFE® Data Interface Ports, Type 4/4X/12
PH (763) 422-2211 • FX (763) 422-2600 • homanonline.com
Subject to change without notice © 2011 Pentair Technical Products
INTERSAFE® Data Interface Ports for SNP Protocol
Left-hand image shows front view, GFCI Receptacle Models. Right-
hand image shows front view, Duplex Receptacle Models. Rear view
with and without terminal cover are below the table.
Bulletin: A70E
Catalog Number Material Conguration Primary Connector/ Termination Secondary Connector/ Termination
Supports Devices Sold by
the Following Manufacturers
HGF5GESNP Steel - 120 VAC GFCI receptacle
- DB15M
- 5-amp circuit breaker
- DB15M
- 10-ft. cable
--- GE Fanuc
HGF5GESNPSS Stainless Steel - 120 VAC GFCI receptacle
- DB15M
- 5-amp circuit breaker
- DB15M
- 10-ft. cable
--- GE Fanuc
HGF5GESNPCC Composite - 120 VAC GFCI receptacle
- DB15M
- 5-amp circuit breaker
- DB15M
- 10-ft. cable
--- GE Fanuc
HDP5GESNP Steel - 120 VAC duplex receptacle
- DB15M
- 5-amp circuit breaker
- DB15M
- 10-ft. cable
--- GE Fanuc
HDP5GESNPSS Stainless Steel - 120 VAC duplex receptacle
- DB15M
- 5-amp circuit breaker
- DB15M
- 10-ft. cable
--- GE Fanuc
HDP5GESNPCC Composite - 120 VAC duplex receptacle
- DB15M
- 5-amp circuit breaker
- DB15M
- 10-ft. cable
--- GE Fanuc
CHS Controls AB
Florettgatan 33
SE-254 67 Helsingborg, Sweden
Tel +46 42 38 61 00, Fax +46 42 38 61 29
chs@chscontrols.se
www.chscontrols.se

1396
Accessories: INTERSAFE® Data Interface Ports
INTERSAFE® Data Interface Ports, Type 4/4X/12
PH (763) 422-2211 • FX (763) 422-2600 • homanonline.com
Subject to change without notice © 2011 Pentair Technical Products
INTERSAFE® Data Interface Ports for USB Protocol, 10-ft. Cable
Left-hand image shows front view, GFCI Receptacle Models. Right-
hand image shows front view, Duplex Receptacle Models. Rear view
with and without terminal cover are below the table.
Bulletin: A70E
Catalog Number Material Conguration Primary Connector/ Termination Secondary Connector/ Termination
Supports Devices Sold by
the Following Manufacturers
HGF5USBUSB Steel - 120 VAC GFCI receptacle
- USB Type A
- USB Type A
- 5-amp circuit breaker
- USB Type Ab- 10-ft. cable with female USB Type B connector - USB Type A
- 10-ft. cable with female USB Type B connector
Computer peripherals
HGF5USBUSBSS Stainless Steel - 120 VAC GFCI receptacle
- USB Type A
- USB Type A
- 5-amp circuit breaker
- USB Type A
- 10-ft. cable with female USB Type B connector
- USB Type A
- 10-ft. cable with female USB Type B connector
Computer peripherals
HGF5USBUSBCC Composite - 120 VAC GFCI receptacle
- USB Type A
- USB Type A
- 5-amp circuit breaker
- USB Type A
- 10-ft. cable with female USB Type B connector
- USB Type A
- 10-ft. cable with female USB Type B connector
Computer peripherals
HDP5USBUSB Steel - 120 VAC duplex receptacle
- USB Type A
- USB Type A
- 5-amp circuit breaker
- USB Type A
- 10-ft. cable with female USB Type B connector
- USB Type A
- 10-ft. cable with female USB Type B connector
Computer peripherals
HDP5USBUSBSS Stainless Steel - 120 VAC duplex receptacle
- USB Type A
- USB Type A
- 5-amp circuit breaker
- USB Type A
- 10-ft. cable with female USB Type B connector
- USB Type A
- 10-ft. cable with female USB Type B connector
Computer peripherals
HDP5USBUSBCC Composite - 120 VAC duplex receptacle
- USB Type A
- USB Type A
- 5-amp circuit breaker
- USB Type A
- 10-ft. cable with female USB Type B connector
- USB Type A
- 10-ft. cable with female USB Type B connector
Computer peripherals
CHS Controls AB
Tel +46 42 38 61 00, Fax +46 42 38 61 29
chs@chscontrols.se www.chscontrols.se

1397
Accessories: INTERSAFE® Data Interface Ports
INTERSAFE® Data Interface Ports, Type 4/4X/12
PH (763) 422-2211 • FX (763) 422-2600 • homanonline.com
Subject to change without notice © 2011 Pentair Technical Products
INTERSAFE® Type 4/4X/12 Data Interface Port
Disk Drive Enclosure
This enclosure, available in both steel and stainless steel, allows
access to one or two customer-supplied disk drives from outside the
cabinet, allowing computer system use and updates without opening
the cabinet.
Bulletin: A70E
Catalog Number Conguration Description
HCP514B CP2/514b Steel 2 gang dual CD/DVD drive cover
HCP514BSS CP2/514b Stainless steel 2 gang dual CD/DVD drive cover
To Order a Modied Conguration for
INTERSAFE® Type 4/4X/12 Data Interface Ports
• Choose the required connectors to a maximum of 8 plate sectors
(refer to Plate Sector Diagram)
• Order connectors using the code in the Connector ID column of
the INTERSAFE® Connectors table
• Homan will determine the layout of the connectors. If a specic
layout is required, contact your local Homan Sales Oce for a
quotation.
• 5-amp circuit breakers will be provided with 120VAC receptacles
unless otherwise specied
• To order, contact your local Homan sales representative
Conguration Example Plate Sectors, 8 Maximum
Customer Requires Code Sectors Used
(1) 6-pin mini DIN (female) MD6 1
(1) RJ45 connector (female) R45 1
(1) GFCI duplex receptacle with 3-amp circuit breaker GF3 5
CHS Controls AB
Florettgatan 33
SE-254 67 Helsingborg, Sweden
Tel +46 42 38 61 00, Fax +46 42 38 61 29
chs@chscontrols.se
www.chscontrols.se

1398
Accessories: INTERSAFE® Data Interface Ports
INTERSAFE® Data Interface Ports, Type 4/4X/12
PH (763) 422-2211 • FX (763) 422-2600 • homanonline.com
Subject to change without notice © 2011 Pentair Technical Products
INTERSAFE® Connector 8M
Connector Description Connector Termination Plate Sectors Used
8-pin mini DIN Terminal Block 2
Left-hand image shows front view. Right-hand image shows rear view.
INTERSAFE® Connector 9FG
Connector Description Connector Termination
Plate Sectors
Used
GE Fanuc Genius 9-pin female with
bracket
10 ft. cable to male 9-pin D-Sub with
bracket
1
Left-hand image shows front view. Right-hand image shows rear view.
INTERSAFE® Connector 9FT
Connector Description Connector Termination Plate Sectors Used
D-Sub 9-pin female 9-pin terminal 2
Left-hand image shows front view. Right-hand image shows rear view.
INTERSAFE® Connector 9M
Connector Description Connector Termination Plate Sectors Used
D-Sub 9-pin male with cable 10 ft cable to female 9-pin D-Sub 1
Left-hand image shows front view. Right-hand image shows rear view.
INTERSAFE® Connector 9MT
Connector Description Connector Termination Plate Sectors Used
D-Sub 9-pin male 9-pin terminal 1
Left-hand image shows front view. Right-hand image shows rear view.
CHS Controls AB
Florettgatan 33
SE-254 67 Helsingborg, Sweden
Tel +46 42 38 61 00, Fax +46 42 38 61 29
chs@chscontrols.se
www.chscontrols.se

1399
Accessories: INTERSAFE® Data Interface Ports
INTERSAFE® Data Interface Ports, Type 4/4X/12
PH (763) 422-2211 • FX (763) 422-2600 • homanonline.com
Subject to change without notice © 2011 Pentair Technical Products
INTERSAFE® Connector 15F
Connector Description Connector Termination Plate Sectors Used
D-Sub 15-pin female 10 ft. cable to male 15-pin D-Sub 1
Left-hand image shows front view. Right-hand image shows rear view.
INTERSAFE® Connector 15FT
Connector Description Connector Termination Plate Sectors Used
D-Sub 15-pin female with 15-pin terminal 15-pin terminal 1
Left-hand image shows front view. Right-hand image shows rear view.
INTERSAFE® Connector 15H
Connector Description Connector Termination
Plate Sectors
Used
D-Sub 15-pin high density female
(Monitor)
10 ft cable to male 15-pin high-density
D-Sub
1
Left-hand image shows front view. Right-hand image shows rear view.
INTERSAFE® Connector 15M
Connector Description Connector Termination Plate Sectors Used
D-Sub 15-pin male 10-ft. cable to female 15-pin D-Sub 1
Left-hand image shows front view. Right-hand image shows rear view.
INTERSAFE® Connector 25F
Connector Description Connector Termination Plate Sectors Use
D-Sub 25-pin female with cable 10 ft. cable to male 25-pin D-Sub 1
Left-hand image shows front view. Right-hand image shows rear view.
CHS Controls AB
Florettgatan 33
SE-254 67 Helsingborg, Sweden
Tel +46 42 38 61 00, Fax +46 42 38 61 29
chs@chscontrols.se
www.chscontrols.se

1400
Accessories: INTERSAFE® Data Interface Ports
INTERSAFE® Data Interface Ports, Type 4/4X/12
PH (763) 422-2211 • FX (763) 422-2600 • homanonline.com
Subject to change without notice © 2011 Pentair Technical Products
INTERSAFE® Connector 25FT
Connector Description Connector Termination Plate Sectors Used
D-Sub 25-pin female with 25-pin terminal 25-pin terminal 2
Left-hand image shows front view. Right-hand image shows rear view.
INTERSAFE® Connector 25M
Connector Description Connector Termination Plate Sectors Used
D-Sub 25-pin male with cable 10-ft. cable to female 25-pin D-Sub 1
Left-hand image shows front view. Right-hand image shows rear view.
INTERSAFE® Connector 25MT
Connector Description Connector Termination Plate Sectors Used
D-Sub 25-pin male 25-pin terminal 2
Left-hand image shows front view. Right-hand image shows rear view.
INTERSAFE® Connector BNC
Connector Description Connector Termination Plate Sectors Used
BNC BNC female receptacle with 10-ft. cable to male BNC 1
Left-hand image shows front view. Right-hand image shows rear view.
INTERSAFE® Connector CN
Connector Description Connector Termination Plate Sectors Used
ControlNet shielded RJ45 female connector 10-ft. shielded cable with male RJ45 2
Left-hand image shows front view. Right-hand image shows rear view.
CHS Controls AB
Florettgatan 33
SE-254 67 Helsingborg, Sweden
Tel +46 42 38 61 00, Fax +46 42 38 61 29
chs@chscontrols.se
www.chscontrols.se

1401
Accessories: INTERSAFE® Data Interface Ports
INTERSAFE® Data Interface Ports, Type 4/4X/12
PH (763) 422-2211 • FX (763) 422-2600 • homanonline.com
Subject to change without notice © 2011 Pentair Technical Products
INTERSAFE® Connector DH
Connector Description Connector Termination Plate Sectors Used
Data Highway Plus DB9F Terminal block 2
Left-hand image shows front view. Right-hand image shows rear view.
INTERSAFE® Connector DNM
Connector Description Connector Termination Plate Sectors Used
DeviceNet Mini Terminal block 2
Left-hand image shows front view. Right-hand image shows rear view.
INTERSAFE® Connector DNP
Connector Description Connector Termination
DeviceNet Phoenix Terminal block
Left-hand image shows front view. Right-hand image shows rear view.
INTERSAFE® Connector DPO
Connector Description Connector Termination Plate Sectors Used
Duplex receptacle with no circuit breaker Terminal block 4
Left-hand image shows front view. Right-hand image shows rear view.
CHS Controls AB
Florettgatan 33
SE-254 67 Helsingborg, Sweden
Tel +46 42 38 61 00, Fax +46 42 38 61 29
chs@chscontrols.se
www.chscontrols.se

1402
Accessories: INTERSAFE® Data Interface Ports
INTERSAFE® Data Interface Ports, Type 4/4X/12
PH (763) 422-2211 • FX (763) 422-2600 • homanonline.com
Subject to change without notice © 2011 Pentair Technical Products
INTERSAFE® Connector DP3
Connector Description Connector Termination Plate Sectors Used
Duplex receptacle with 3-amp circuit breaker Terminal block 5
Left-hand image shows front view. Right-hand image shows rear view.
INTERSAFE® Connector DP5
Connector Description Connector Termination Plate Sectors Used
Duplex receptacle with 5-amp circuit breaker Terminal block 5
Left-hand image shows front view. Right-hand image shows rear view.
INTERSAFE® Connector ETH
Connector Description Connector Termination Plate Sectors Used
RJ45 female connector 10-ft. cable with male RJ45 1
Left-hand image shows front view. Right-hand image shows rear view.
INTERSAFE® Connector GEG
Connector Description Connector Termination Plate Sectors Used
DB9 GE Genius 10-ft. cable 1
Left-hand image shows front view. Right-hand image shows rear view.
CHS Controls AB
Florettgatan 33
SE-254 67 Helsingborg, Sweden
Tel +46 42 38 61 00, Fax +46 42 38 61 29
chs@chscontrols.se
www.chscontrols.se

1403
Accessories: INTERSAFE® Data Interface Ports
INTERSAFE® Data Interface Ports, Type 4/4X/12
PH (763) 422-2211 • FX (763) 422-2600 • homanonline.com
Subject to change without notice © 2011 Pentair Technical Products
INTERSAFE® Connector GFO
Connector Description Connector Termination
GFCI receptacle Terminal block
Left-hand image shows front view. Right-hand image shows rear view.
INTERSAFE® Connector GF3
Connector Description Connector Termination Plate Sectors Used
GFCI receptacle with 3-amp circuit breaker Terminal block 5
Left-hand image shows front view. Right-hand image shows rear view.
INTERSAFE® Connector GF5
Connector Description Connector Termination Plate Sectors Used
GFCI receptacle with 5-amp circuit breaker Terminal block 5
Left-hand image shows front view. Right-hand image shows rear view.
CHS Controls AB
Florettgatan 33
SE-254 67 Helsingborg, Sweden
Tel +46 42 38 61 00, Fax +46 42 38 61 29
chs@chscontrols.se
www.chscontrols.se

1404
Accessories: INTERSAFE® Data Interface Ports
INTERSAFE® Data Interface Ports, Type 4/4X/12
PH (763) 422-2211 • FX (763) 422-2600 • homanonline.com
Subject to change without notice © 2011 Pentair Technical Products
INTERSAFE® Connector MCL
Connector Description Connector Termination Plate Sectors Used
Micrologix 10-ft. cable 1
Left-hand image shows front view. Right-hand image shows rear view.
INTERSAFE® Connector MCL8
Connector Description Connector Termination Plate Sectors Used
Micrologix 10-ft. cable 1
Left-hand image shows front view. Right-hand image shows rear view.
INTERSAFE® Connector MD6
Connector Description Connector Termination
6-pin mini DIN (female) 10-ft. cable with female 6-pin mini DIN
Left-hand image shows front view. Right-hand image shows rear view.
INTERSAFE® Connector MD8
Connector Description Connector Termination Plate Sectors Used
8-pin mini DIN (female) 10-ft. cable with male 8-pin mini DIN 1
Left-hand image shows front view. Right-hand image shows rear view.
CHS Controls AB
Florettgatan 33
SE-254 67 Helsingborg, Sweden
Tel +46 42 38 61 00, Fax +46 42 38 61 29
chs@chscontrols.se
www.chscontrols.se

1405
Accessories: INTERSAFE® Data Interface Ports
INTERSAFE® Data Interface Ports, Type 4/4X/12
PH (763) 422-2211 • FX (763) 422-2600 • homanonline.com
Subject to change without notice © 2011 Pentair Technical Products
INTERSAFE® Connector PB
Connector Description Connector Termination Plate Sectors Used
ProBus 9-pin Terminal 2
Left-hand image shows front view. Right-hand image shows rear view.
INTERSAFE® Connector R11
Connector Description Connector Termination Plate Sectors Used
RJ11 female connector with male RJ12 10-ft. cable with male RJ12 1
Left-hand image shows front view. Right-hand image shows rear view.
INTERSAFE® Connector RJS
Connector Description Connector Termination Plate Sectors Used
RJ45 shielded female connector 10-ft. shielded cable with male RJ45 2
Left-hand image shows front view. Right-hand image shows rear view.
INTERSAFE® Connector SNP
Connector Description Connector Termination Plate Sectors Used
DB15F GESNP DB15 male GESNP with 10-ft. cable 1
Left-hand image shows front view. Right-hand image shows rear view.
CHS Controls AB
Florettgatan 33
SE-254 67 Helsingborg, Sweden
Tel +46 42 38 61 00, Fax +46 42 38 61 29
chs@chscontrols.se
www.chscontrols.se

1406
Accessories: INTERSAFE® Data Interface Ports
INTERSAFE® Data Interface Ports, Type 4/4X/12
PH (763) 422-2211 • FX (763) 422-2600 • homanonline.com
Subject to change without notice © 2011 Pentair Technical Products
INTERSAFE® Connector SPO
Connector Description Connector Termination Plate Sectors Used
Single receptacle with no circuit breaker Terminal block with terminal cover 2
Left-hand image shows front view. Right-hand image shows rear view.
INTERSAFE® Connector SP3
Connector Description Connector Termination Plate Sectors Used
Single receptacle with 3-amp circuit breaker Terminal block with terminal cover 2
Left-hand image shows front view. Right-hand image shows rear view.
INTERSAFE® Connector SP5
Connector Description Connector Termination Plate Sectors Used
Single receptacle with 5-amp circuit breaker Terminal block with terminal cover 2
Left-hand image shows front view. Right-hand image shows rear view.
INTERSAFE® Connector TMB
Connector Description Connector Termination Plate Sectors Used
DB9F Modbus 10-ft. cable 1
Left-hand image shows front view. Right-hand image shows rear view.
CHS Controls AB
Florettgatan 33
SE-254 67 Helsingborg, Sweden
Tel +46 42 38 61 00, Fax +46 42 38 61 29
chs@chscontrols.se
www.chscontrols.se

1407
Accessories: INTERSAFE® Data Interface Ports
INTERSAFE® Data Interface Ports, Type 4/4X/12
PH (763) 422-2211 • FX (763) 422-2600 • homanonline.com
Subject to change without notice © 2011 Pentair Technical Products
INTERSAFE® Connector TMM
Connector Description Connector Termination Plate Sectors Used
DB9F Micro 10-ft. cable 1
Left-hand image shows front view. Right-hand image shows rear view.
INTERSAFE® Connector USB
Connector Description Connector Termination Plate Sectors Used
USB Type A, female input 10-ft. cable, USB Type B connector 1
Left-hand image shows front view. Right-hand image shows rear view.
CHS Controls AB
Florettgatan 33
SE-254 67 Helsingborg, Sweden
Tel +46 42 38 61 00, Fax +46 42 38 61 29
chs@chscontrols.se
www.chscontrols.se

1408
Accessories: EMC Accessories
EMC Accessories
PH (763) 422-2211 • FX (763) 422-2600 • homanonline.com
Subject to change without notice © 2011 Pentair Technical Products
EMC Accessor ies
EMC Accessor ies
Bonding Cable Clamps
These cable clamps are used when
securing cables. They provide the
conductivity required to ground the
shielding on EMC-shielded cable.
Bulletin: A80
Catalog Number Max. Cable Diameter (in.) Max. Cable Diameter (mm)
ABCC6 0.25 6
ABCC95 0.38 10
ABCC125 0.50 13
ABCC19 0.75 19
EMC Cable Strain Reliefs
These cable strain reliefs have provisions for grounding the EMC
shielding of cables entering an enclosure while maintaining a NEMA
Type 4 seal.
Bulletin: A80
Catalog Number Size
Cable Diameter
mm/in.
Hole Diameter
mm/in.
ACSR4EMC PG9 4 - 6
0.16 - 0.24
16
0.63
ACSR6EMC PG11 6 - 10
0.24 - 0.39
19
0.75
ACSR10EMC PG16 10 - 14
0.39 - 0.55
23
0.91
ACSR14EMC PG16 14 - 17
0.55 - 0.67
23
0.91
ACSR17EMC PG21 17 - 20
0.67 - 0.79
29
1.14
ACSR19EMC PG29 19 - 23
0.75 - 0.91
38
1.50
ACSR22EMC PG29 22 - 27
0.87 - 1.06
38
1.50
ACSR25EMC PG36 25 - 30
0.98 - 1.18
48
1.89
ACSR29EMC PG36 29 - 32
1.14 - 1.26
48
1.89
Bonding Straps Bonding straps assist in maintaining a constant voltage potential
across a ground plane.
Bulletin: A80
Catalog Number
Length
mm/in. Package Quantity
ABS6 152
6.00
3
ABS12 305
12.00
3
ABS18 457
18.00
3
CHS Controls AB
Florettgatan 33
SE-254 67 Helsingborg, Sweden
Tel +46 42 38 61 00, Fax +46 42 38 61 29
chs@chscontrols.se
www.chscontrols.se

1409
Accessories: EMC Accessories
EMC Accessories
PH (763) 422-2211 • FX (763) 422-2600 • homanonline.com
Subject to change without notice © 2011 Pentair Technical Products
Notes
CHS Controls AB
Florettgatan 33
SE-254 67 Helsingborg, Sweden
Tel +46 42 38 61 00, Fax +46 42 38 61 29
chs@chscontrols.se
www.chscontrols.se

1410
Accessories: INLINE® Accessories
INLINE® Accessories
PH (763) 422-2211 • FX (763) 422-2600 • homanonline.com
Subject to change without notice © 2011 Pentair Technical Products
INLINE® Acc essories
INLINE® Acc essories
INLINE® Panels
Panels are 12 gauge steel with a white polyester powder paint or
conductive nish. Ground hole is labeled. Sized for M6 fastener.
Bulletin: A53, A54P
Catalog Number Material
Panel Size
D x E (mm)
Panel Size
D x E (in.)
Fits INLINE
Enclosure Size (mm)
LP1515 Painted Steel 131 x 131 5.16 x 5.16 150 x 150
LP1515G Conductive 131 x 131 5.16 x 5.16 150 x 150
LP2015 Painted Steel 181 x 131 7.13 x 5.16 200 x 150
LP2015G Conductive 181 x 131 7.13 x 5.16 200 x 150
LP2520 Painted Steel 231 x 181 9.10 x 7.13 250 x 200
LP2520G Conductive 231 x 181 9.10 x 7.13 250 x 200
LP3025 Painted Steel 281 x 231 11.07 x 9.10 300 x 250
LP3025G Conductive 281 x 231 11.07 x 9.10 300 x 250
LP3530 Painted Steel 331 x 281 13.04 x 11.07 350 x 300
LP3530G Conductive 331 x 281 13.04 x 11.07 350 x 300
LP2040 Painted Steel 181 x 381 7.13 x 15.01 200 x 400
LP2040G Conductive 181 x 381 7.13 x 15.01 200 x 400
LP2060 Painted Steel 181 x 581 7.13 x 22.89 200 x 600
LP2060G Conductive 181 x 581 7.13 x 22.89 200 x 600
INLINE® Landscape Panels
Panels are 12 gauge steel with a white polyester powder paint or
conductive nish. They include a labeled ground hole sized for an
M6 screw. Panels mount on studs provided in the enclosure or to
optional DIN mounting brackets.
Bulletin: A54P
Catalog Number
Conductive
Panel
Panel Size
D x E (mm)
Panel Size
D x E (in.)
LP2331 LP2331G 211 x 291 8.31 x 11.46
LP2346 LP2346G 211 x 441 8.31 x 17.36
LP2360 LP2360G 211 x 581 8.31 x 22.87
LP2377 LP2377G 211 x 751 8.31 x 29.57
LP2393 LP2393G 211 x 906 8.31 x 35.67
Mounting-Bracket Kit Kit is eld-installable on all solid-back-body enclosures. Hardware
included. Four brackets per kit.
Bulletin: A54SY, A54Y
Catalog Number Description
LMFK Plated steel mounting-bracket kit
LMFKSS Type 316L stainless steel mounting-bracket kit
Lock Inserts
Lock Inserts can replace the standard
slotted quarter-turn latch. Inserts
have chrome nish. Key included.
Bulletin: A54Y
Catalog Number Description
LLKSM7 Square 7 mm
LLKSM8 Square 8 mm
LLKDB Daimler Benz
LLKDBM3 Double bit 3 mm
LLKSS Slotted screw
CHS Controls AB
Florettgatan 33
SE-254 67 Helsingborg, Sweden
Tel +46 42 38 61 00, Fax +46 42 38 61 29
chs@chscontrols.se
www.chscontrols.se

1411
Accessories: INLINE® Accessories
INLINE® Accessories
PH (763) 422-2211 • FX (763) 422-2600 • homanonline.com
Subject to change without notice © 2011 Pentair Technical Products
Wing Knob Latch
Wing Knob Latch can replace the
standard slotted, quarter-turn latch
on all hinged-cover and window-
cover enclosures. Latch is black
die-cast zinc. Includes two keys and
installation instructions. Reduces UL
Type rating from 4 or 4X to 12.
Bulletin: A54Y
Catalog Number Product Weight
LLKWK 0.2 lb.
Grounding Kit Grounding Kit provides means to attach a grounding conductor to
the enclosure. Kit includes two insulated copper wires with a ring
terminal at each end, all installation hardware and instructions.
Bulletin: A54Y
Catalog Number Product Weight
LLGK 0.2 lb.
DIN3 Type Rails
Rails furnish mounting surfaces for
DIN3 mount snap-on devices. Rails
attach vertically or horizontally to
mounting brackets. Kit includes 4
rails and installation instructions.
DIN3 Rail Mounting Brackets are
required in order to mount rails.
Bulletin: A54Y
Catalog Number Fits INLINE Enclosure L (mm) L (in.) Pkg. Qty.
LDR3P15 when A or B = 150 mm 125 4.92 4
LDR3P20 when A or B = 200 mm 175 6.89 4
LDR3P25 when A or B = 250 mm 225 8.86 4
LDR3P30 when A or B = 300 mm 275 10.83 4
LDR3P31 when A or B = 310 mm 285 11.22 4
LDR3P35 when A or B = 350 mm 325 12.80 4
LDR3P40 when A or B = 400 mm 375 14.76 4
LDR3P46 when A or B = 460 mm 435 17.13 4
LDR3P60 when A or B = 600 mm 575 22.64 4
LDR3P77 when A or B = 770 mm 745 29.33 4
LDR3P93 when A or B = 925 mm 900 36.43 4
DIN Rail or Panel-Mounting Brackets
Use as a mounting framework to install DIN rails or a panel. Bracket is
oset for additional space in front of or behind mounted equipment.
Plated 12 gauge steel. Mounting hardware included. Brackets are
required for DIN3 type rails.
Bulletin: A54Y
Catalog Number Fits INLINE Enclosure
LMK15 when A or B = 150 mm
LMK20 when A or B = 200 mm
LMK23 when A or B = 230 mm
LMK25 when A or B = 250 mm
LMK30 when A or B = 300 mm
LMK35 when A or B = 350 mm
600-mm and longer enclosures require two sets of brackets for mounting panels.
CHS Controls AB
Florettgatan 33
SE-254 67 Helsingborg, Sweden
Tel +46 42 38 61 00, Fax +46 42 38 61 29
chs@chscontrols.se
www.chscontrols.se

1412
Accessories: CONCEPT® Accessories
CONCEPT® Accessories
PH (763) 422-2211 • FX (763) 422-2600 • homanonline.com
Subject to change without notice © 2011 Pentair Technical Products
CONCEPT® Acce ssories
CONCEPT® Acce ssories
CONCEPT® Panel Conversion Kit Panel Conversion Kit adapts enclosure for mounting standard NEMA-
style panels in CONCEPT® enclosures. Bracket attaches to rear collar
stud. Kit includes four adapter plates and hardware for mounting
panel.
Bulletin: CWY
Catalog Number Material Fits CONCEPT Enclosure
CCPM4 Steel When A x B is equal to or less than 30.00 x 30.00 in. (762 x 762 mm)
Swing-Out Rack Frame Swing-Out Rack Frames provide 120-degree swing-out access for
19-in. rack equipment. Welded rack frame mounts to front ange.
Distance from frame to door surface is 1.32 in. (33 mm) for solid doors
and 1.07 in. (27 mm) for window doors. Frame is painted steel ANSI 61
gray. Mounting hinge and latching hardware provided.
Order separately clip nut package catalog number XNM5 and screws
XSM5 (metric) or AN1032 and screws AS1032 (English).
Swing-Out Rack Frame cannot be mounted on adjustable mounting kit.
Bulletin: CWY
Catalog Number Material Fits Enclosure A x B
CSF2424 Painted steel 24.00 x 24.00 in. (610 x 610 mm)
CSF3024 Painted steel 30.00 x 24.00 in. (762 x 610 mm)
CSF3624 Painted steel 36.00 x 24.00 in. (914 x 610 mm)
Pole-Mount Kit Use to mount CONCEPT®, Networking and wall-mount enclosures
to poles of various sizes and shapes. Simply attach the plated steel
channel bar to the mounting holes at the back of the enclosure and
wrap the stainless steel strap around the pole and through the bar.
Kit includes two mounting channels, two straps suitable for 3-in. (76-
mm) to 12-in. (305-mm) diameter pole and mounting hardware.
Bulletin: CWY
Catalog Number Fits Enclosure (in.) Fits Enclosure (mm)
CPMK12 when B = 12.00 when B = 305
CPMK16 when B = 16.00 when B = 406
CPMK20 when B = 20.00 when B = 508
CPMK24 when B = 24.00 when B = 610
CPMK30 when B = 30.00 when B = 762
Mounting Channels Mounting Channels provide mounting framework for installing
DIN rails and grid straps at various positions within the enclosure.
Channels can be mounted vertically or horizontally to collar studs or
to the slide mechanisms of the adjustable-depth mounting kit. Kit
includes two channels.
Bulletin: CWY
Catalog Number Fits CONCEPT Enclosure
CMC12 when A or B = 12.00 in. (305 mm)
CMC16 when A or B = 16.00 in. (406 mm)
CMC20 when A or B = 20.00 in. (508 mm)
CMC24 when A or B = 24.00 in. (610 mm)
CMC60 when A or B = 60.00 in. (1524 mm)
CHS Controls AB
Florettgatan 33
SE-254 67 Helsingborg, Sweden
Tel +46 42 38 61 00, Fax +46 42 38 61 29
chs@chscontrols.se
www.chscontrols.se

1413
Accessories: CONCEPT® Accessories
CONCEPT® Accessories
PH (763) 422-2211 • FX (763) 422-2600 • homanonline.com
Subject to change without notice © 2011 Pentair Technical Products
Rack-Mount Angles Rack-Mount Angles are a mounting means for 19-in. rack equipment
in 24-in. wide enclosures. L-shaped through-hole angles attach to
enclosure ange or the adjustable-depth mounting kit. Holes are
.281 in. (7 mm) in diameter. Clear plated 14 gauge steel construction.
Mounting hardware included.
Order separately clip nut package catalog number XNM5 and screws
XSM5 (metric) or AN1032 and screws AS1032 (English).
Bulletin: CWY
Catalog Number Fits CONCEPT Enclosure Rack Units
CRA12TH when A = 24.00 in. (610 mm) 12
CRA16TH when A = 30.00 in. (762 mm) 16
DIN3 Rail Kits DIN3 Rail Kits supply mounting surfaces for DIN mount snap-on
devices in either DIN 1, DIN 3 or CENELEC styles. Rails attach vertically
or horizontally to rear collar stud or to mounting channels. Kit
includes three rails and mounting hardware.
Bulletin: CWY
Catalog Number Fits CONCEPT Enclosure
CDR3P12 when A or B = 12.00 in. (305 mm)
CDR3P16 when A or B = 16.00 in. (406 mm)
CDR3P20 when A or B = 20.00 in. (508 mm)
CDR3P24 when A or B = 24.00 in. (610 mm)
CHS Controls AB
Florettgatan 33
SE-254 67 Helsingborg, Sweden
Tel +46 42 38 61 00, Fax +46 42 38 61 29
chs@chscontrols.se
www.chscontrols.se

1414
Accessories: CONCEPT® Accessories
CONCEPT® Accessories
PH (763) 422-2211 • FX (763) 422-2600 • homanonline.com
Subject to change without notice © 2011 Pentair Technical Products
CONCEPT® Panels
These panels are taller and wider than corresponding NEMA-size
panels. Panels are 14 or 12 gauge steel and painted white or have a
conductive nish.
Panels have a formed ange along any side that is longer than 22.20 in.
(564 mm). CP2420 and CP2424 have a ange on all four sides.
Bulletin: CWP, CWY
Catalog Number Panel Type Panel Size D x E (in.) Panel Size D x E (mm) Gauge
CP1212 Painted steel 10.20 x 10.20 259 x 259 14
CP1212G Conductive 10.20 x 10.20 259 x 259 14
CP1612 Painted steel 14.20 x 10.20 361 x 259 14
CP1612G Conductive 14.20 x 10.20 361 x 259 14
CP1616 Painted steel 14.20 x 14.20 361 x 361 12
CP1616G Conductive 14.20 x 14.20 361 x 361 12
CP2016 Painted steel 18.20 x 14.20 462 x 361 12
CP2016G Conductive 18.20 x 14.20 462 x 361 12
CP2014 Painted steel 18.20 x 12.20 462 x 310 14
CP2014G Conductive 18.20 x 14.20 462 x 310 14
CP2416 Painted steel 22.20 x 14.20 564 x 361 12
CP2416G Conductive 22.20 x 14.20 564 x 361 12
CP2020 Painted steel 18.20 x 18.20 462 x 462 12
CP2020G Conductive 18.20 x 18.20 462 x 462 12
CP2420 Painted steel 22.20 x 18.20 564 x 462 12
CP2420G Conductive 22.20 x 18.20 564 x 462 12
CP3020 Painted steel 28.20 x 18.20 716 x 462 12
CP3020G Conductive 28.20 x 18.20 716 x 462 12
CP2424 Painted steel 22.20 x 22.20 564 x 564 12
CP2424G Conductive 22.20 x 22.20 564 x 564 12
CP3024 Painted steel 28.20 x 22.20 716 x 564 12
CP3024G Conductive 28.20 x 22.20 716 x 564 12
CP3624 Painted steel 34.20 x 22.20 869 x 564 12
CP3624G Conductive 34.20 x 22.20 869 x 564 12
CP4824 Painted steel 46.20 x 22.20 1173 x 564 12
CP4824G Conductive 46.20 x 22.20 1173 x 564 12
CP3030 Painted steel 28.20 x 28.20 716 x 716 12
CP3030G Conductive 28.20 x 28.20 716 x 716 12
CP3630 Painted steel 34.20 x 28.20 869 x 716 12
CP3630G Conductive 34.20 x 28.20 869 x 716 12
CP4230 Painted steel 40.20 x 28.20 1021 x 716 12
CP4230G Conductive 40.20 x 28.20 1021 x 716 12
CP3636 Painted steel 34.20 x 34.20 869 x 869 12
CP3636G Conductive 34.20 x 34.20 869 x 869 12
CP4236 Painted steel 40.20 x 34.20 1021 x 869 12
CP4236G Conductive 40.20 x 34.20 1021 x 869 12
CP4836 Painted steel 46.20 x 34.20 1173 x 869 12
CP4836G Conductive 46.20 x 34.20 1173 x 869 12
CP6036 Painted steel 58.20 x 34.20 1478 x 869 12
CP6036G Conductive 58.20 x 34.20 1478 x 869 12
CP2442 Painted steel 22.20 x 40.20 564 x 1021 12
CP2442G Conductive 22.20 x 40.20 564 x 1021 12
CP3048 Painted steel 28.20 x 46.20 716 x 1173 12
CP3048G Conductive 28.20 x 46.20 716 x 1173 12
CP3060 Painted steel 28.20 x 58.20 716 x 1478 12
CP3060G Conductive 28.20 x 58.20 716 x 1478 12
CP7236 Painted steel 70.20 x 34.20 1783 x 869 12
Catalog number CP4230 is used on CONCEPT disconnect enclosures.
CHS Controls AB
Florettgatan 33
SE-254 67 Helsingborg, Sweden
Tel +46 42 38 61 00, Fax +46 42 38 61 29
chs@chscontrols.se
www.chscontrols.se

1415
Accessories: CONCEPT® Accessories
CONCEPT® Accessories
PH (763) 422-2211 • FX (763) 422-2600 • homanonline.com
Subject to change without notice © 2011 Pentair Technical Products
CONCEPT® Swing-Out Panels
Panels swing clear from the front of the enclosure to provide access
to mounted internal equipment. For CSPB panels, maximum swing
is 94 degrees. For CSP panels, maximum panel swing is 106 degrees.
Distance from panel surface to door when in the latched position
is 1.71 in. (43 mm) for solid doors and 1.45 in. (37 mm) for window
doors. Kits include panel, brackets and hardware to mount to the
front ange.
Swing-out panels also can be mounted on front-to-back adjustable rails.
CSPB panels require adapter CSPBADB and front-to-back adjustable rails
for front-to-back adjustment.
Bulletin: CWY
CSPB Panels
Catalog Number
Fits
Enclosure
Size (in.)
Fits
Enclosure
Size (mm)
Panel
Size (in.)
Panel
Size (mm)
CSPB1212 12.00 x 12.00 305 x 305 9.72 x 9.75 247 x 248
CSPB1612 16.00 x 12.00 406 x 305 13.72 x 9.75 349 x 248
CSPB1616 16.00 x 16.00 406 x 406 13.72 x 13.75 349 x 349
CSPB1620 16.00 x 20.00 406 x 508 13.72 x 17.75 349 x 451
CSPB2016 20.00 x 16.00 508 x 406 17.72 x 13.75 450 x 349
CSPB2020 20.00 x 20.00 508 x 508 17.72 x 17.75 450 x 451
CSPB2024 20.00 x 24.00 508 x 610 17.72 x 21.75 450 x 553
CSPB2416 24.00 x 16.00 610 x 406 21.72 x 13.73 552 x 349
CSPB2420 24.00 x 20.00 610 x 508 21.72 x 17.75 552.452
CSPB2424 24.00 x 24.00 610 x 610 21.72 x 21.75 552 x 553
CSPB2430 24.00 x 30.00 610 x 762 21.72 x 27.75 552 x 705
CSPB3020 30.00 x 20.00 762 x 508 27.72 x 17.75 704 x 451
CSPB3024 30.00 x 24.00 762 x 610 27.72 x 21.75 704 x 553
CSPB3030 30.00 x 30.00 762 x 762 27.72 x 27.75 704 x 705
CSPB3624 36.00 x 24.00 914 x 610 33.72 x 21.75 857 x 553
CSPB3630 36.00 x 30.00 914 x 762 33.72 x 27.75 857 x 705
CSPB3636 36.00 x 36.00 914 x 914 33.72 x 33.75 857 x 857
CSPB4236 42.00 x 36.00 1067 x 914 39.72 x 33.75 1009 x 857
CSPB4824 48.00 x 24.00 1219 x 610 45.72 x 21.75 1161 x 553
CSPB4836 48.00 x 36.00 1219 x 914 45.72 x 33.75 1161 x 857
CSPB6036 60.00 x 36.00 1542 x 914 57.72 x 33.75 1466 x 857
CSP Panels
Catalog Number
Fits
Enclosure (in.)
Fits
Enclosure (mm)
Panel
Size (in.)
Panel
Size (mm)
CSP1212 12.00 x 12.00 305 x 305 9.78 x 9.84 248 x 250
CSP1612 16.00 x 12.00 406 x 305 13.78 x 9.84 350 x 250
CSP1616 16.00 x 16.00 406 x 406 13.78 x 13.84 350 x 352
CSP1620 16.00 x 20.00 406 x 508 13.78 x 17.84 350 x 453
CSP2016 20.00 x 16.00 508 x 406 17.78 x 13.84 452 x 352
CSP2020 20.00 x 20.00 508 x 508 17.78 x 17.84 452 x 453
CSP2024 20.00 x 24.00 508 x 610 17.78 x 21.84 452 x 555
CSP2416 24.00 x 16.00 610 x 406 21.78 x 13.84 553 x 352
CSP2420 24.00 x 20.00 610 x 508 21.78 x 17.84 553 x 453
CSP2424 24.00 x 24.00 610 x 610 21.78 x 21.84 553 x 555
CSP3020 30.00 x 20.00 762 x 508 27.78 x 17.84 706 x 453
CSP3024 30.00 x 24.00 762 x 610 27.78 x 21.84 706 x 555
CSP3030 30.00 x 30.00 762 x 762 27.78 x 27.84 706 x 707
CSP3624 36.00 x 24.00 914 x 610 33.78 x 21.84 858 x 555
CSP3630 36.00 x 30.00 914 x 762 33.78 x 27.84 858 x 707
CSP3636 36.00 x 36.00 914 x 914 33.78 x 33.84 858 x 860
CONCEPT® Adapter Bracket
Adapter bracket for use with CONCEPT® B-style Swing-Out Panels
and Adjustable-Depth Mounting Kits. Bracket enables the B-style
swing-out panels to be mounted in innite front-to-back positions
within a CONCEPT enclosure.
Bulletin: CWY
Catalog Number Material
CSPBADB Steel
Handles Handles can replace the standard slotted insert on all CONCEPT®
wall-mount enclosures. The CONCEPT non-locking handle provides
quick and easy access to the enclosure contents. Handle is black
plastic. A zinc die-cast keylock handle is available for applications
requiring quick access and security. A padlocking handle, also zinc
die-cast, accommodates a padlock with up to a 5/16-in. locking
bar. Each latch system can be converted from clockwise to counter-
clockwise opening. Kit includes all hardware.
Bulletin: CWY
Catalog Number UL Rating Description
CWHK Maintains UL/CSA Type 12 when properly installed Keylock handle
CWHNL Maintains UL Type 3, 4, 4X, 12 when properly installed Non-locking handle
CWHPTO Maintains UL/CSA Type 3, 4, 12 when properly installed Padlock handle
CWHNL is not suitable for 3-point latch operation.
CHS Controls AB
Tel +46 42 38 61 00, Fax +46 42 38 61 29
chs@chscontrols.se www.chscontrols.se

1416
Accessories: CONCEPT® Accessories
CONCEPT® Accessories
PH (763) 422-2211 • FX (763) 422-2600 • homanonline.com
Subject to change without notice © 2011 Pentair Technical Products
Door Stop Kit Door Stop Kit secures the door in the open position. Kit can be
installed at the top or bottom of a door which opens horizontally.
Door opening angle can be easily adjusted by means of a wing nut.
Stop arm slides neatly out of the way when the door is closed. All
parts are plated. Mounting hardware included.
• Door stop kits should not be installed on enclosures congured with a
swing-out panel or swing-out rack frame
• Door stop kits cannot be used with CONCEPT window doors
Bulletin: A80
Catalog Number Finish
ADSTOPK Plated Steel
Data Pockets Data Pockets provide convenient storage for wiring diagrams,
operation manuals and other documentation inside an enclosure.
Pocket mounts on studs located on the inside of a solid-door
enclosure. Constructed of high-impact thermoplastic, pockets are
dark gray and have cutout areas for easy access and visibility to
contents. Mounting hardware included.
Bulletin: UX1Y
Catalog Number
Length x Width
in./mm Fits CONCEPT Enclosure
ADP1 6.00 x 6.00
152 x 152
when A is less than or equal to 24
and B is less than or equal to 24
ADP2 12.00 x 12.00
305 x 305
when A is greater than or equal to 30
and B is greater than or equal to 20
Use ADP2 when A = 24 and B = 30
Lock Inserts Lock inserts can be substituted for the standard 3-mm double-bit
latch insert. Inserts have a chrome nish. Matching key is zinc die-
cast.
Bulletin: A4GY, CWY
Catalog Number Description
CLKTM7 Triangular 7-mm insert with key
CLKSM7 Square 7-mm insert with key
CLKDBM3 Double bit with key
CLKSLOT Slotted Insert no key
Mounting-Bracket Kits Mounting-Bracket Kits are eld installable. Composite and stainless
steel brackets are rated to Type 4X. Set of four (4) brackets can
support 500 lb. maximum load. All hardware is included. Four
brackets per kit.
Mounting brackets are required to maintain UL/CSA external mounting
requirement.
Bulletin: A80
Catalog Number Description
CMFK Steel
CMFKSS Stainless Steel
CMTGFT Composite
CHS Controls AB
Florettgatan 33
SE-254 67 Helsingborg, Sweden
Tel +46 42 38 61 00, Fax +46 42 38 61 29
chs@chscontrols.se
www.chscontrols.se

1417
Accessories: CONCEPT® Accessories
CONCEPT® Accessories
PH (763) 422-2211 • FX (763) 422-2600 • homanonline.com
Subject to change without notice © 2011 Pentair Technical Products
Hinge Pins Contact Customer Service to order new mild steel hinge pins for an
existing product.
Bulletin: VM3
Catalog Number Description Qty.
GHPINMS Hinge Pin 2
Door Bars Non-metallic door bar includes pressure-sensitive tape adhesive.
Bulletin: CWY
Catalog Number Description Length Qty.
ADB305MM Door Bar 8 in. (203 mm) 4
CHS Controls AB
Florettgatan 33
SE-254 67 Helsingborg, Sweden
Tel +46 42 38 61 00, Fax +46 42 38 61 29
chs@chscontrols.se
www.chscontrols.se