Specifiers Guide Chapter 5 133663 Catalog
2014-10-22
: Pdf 133663-Catalog 133663-Catalog Batch9 unilog
Open the PDF directly: View PDF
.
Page Count: 108 [warning: Documents this large are best viewed by clicking the View PDF Link!]
- Wall-Mount Preferred-Cutout Disconnect Enclosures
- Wall-Mount Preferred-Cutout Overview
- Preferred Cutout, Disconnect Enclosure, Type 12
- CONCEPT® Wall-Mount Disconnect Enclosures
- Type 4 and 12 Wall-Mount Disconnect Enclosures
- Fiberglass Disconnect Enclosures
- Low-Profile Type 12 Disconnect Enclosures and Accessories
- Hoffman WATERSHED® Wall-Mount Disconnect Enclosures
- Wall-Mount Fixed-Depth Allen-Bradley Disconnect Enclosures
- Free-Stand Preferred-Cutout Disconnect Enclosures
- Free-Stand Stainless Steel Preferred-Cutout Disconnect Enclosures
- Free-Stand Universal-Cutout Disconnect Enclosures
- SEQUESTR® Preferred-Cutout Disconnect Enclosures
- Disconnect Enclosure Accessories

310
:
PH (763) 422-2211 • FX (763) 422-2600 • homanonline.com
Subject to change without notice © 2011 Pentair Technical Products
PH (763) 422-2211
FX (763) 422-2600
PH (763) 422-2211
FX (763) 422-2600 5
Disconnect
Featured
Products
in this
Chapter
▶ CONCEPT® Disconnect Enclosure,
Type 4X P. 317
▶ Fiberglass Disconnect, Type 4X P. 328
▶ WATERSHED® Disconnect Enclosure,
Type 4X P. 340
▶ SEQUESTR™ External Disconnect
Enclosure Package, Type 12 P. 408
CHAPTER

311
:
PH (763) 422-2211 • FX (763) 422-2600 • homanonline.com
Subject to change without notice © 2011 Pentair Technical Products
CHAPTER CONTENTS
5
Wall-Mount Preferred-Cutout Disconnect
Enclosures
Wall-Mount Preferred-Cutout Overview
Preferred-Cutout Overview . . . . . . . . . . . . . . . . . . . . . . 312
Preferred Cutout, Disconnect Enclosure, Type 12
Preferred Cutout, Disconnect Enclosure, Type 12 . 313
POWERGLIDE® Defeater Handle Kit . . . . . . . . . . . . . . .316
Disconnect Mounting Space . . . . . . . . . . . . . . . . . . . . .316
CONCEPT® Wall-Mount Disconnect Enclosures
CONCEPT® Disconnect Enclosure, Type 4 . . . . . . . . . 317
CONCEPT® Disconnect Enclosure, Type 4X . . . . . . . . 319
CONCEPT® with Quarter-Turn Latches Disconnect
Enclosure, Type 4X ..............................322
Disconnect Mounting Space . . . . . . . . . . . . . . . . . . . . .323
Type 4 and 12 Wall-Mount Disconnect Enclosures
Disconnect Enclosure with Clamps, Type 4 . . . . . . .324
Disconnect Enclosure with Clamps, Type 4X . . . . . .326
Disconnect Mounting Space . . . . . . . . . . . . . . . . . . . . .327
Fiberglass Disconnect Enclosures
Fiberglass Disconnect, Type 4X . . . . . . . . . . . . . . . . . . .328
Disconnect Mounting Space . . . . . . . . . . . . . . . . . . . . .331
Low-Prole Type 12 Disconnect Enclosures and
Accessories
Low-Prole, One- to Five-Door Disconnect Enclosure,
Type 12 ........................................332
Disconnect Mounting Space . . . . . . . . . . . . . . . . . . . . .339
Panels for A26 Low-Prole Type 12 Disconnect
Enclosures ......................................339
Homan WATERSHED® Wall-Mount Disconnect
Enclosures
WATERSHED® Disconnect Enclosure, Type 4X . . . . .340
Disconnect Mounting Space . . . . . . . . . . . . . . . . . . . . .341
Mounting Bracket Kit .............................342
Stand-O Kit .....................................342
Padlocking Handle Kit ............................342
Padlocking Latch Kit .............................342
Wall-Mount Fixed-Depth Allen-Bradley
Disconnect Enclosures
Wall-Mount Fixed-Depth AB Cutout Overview
Fixed-Depth Allen-Bradley Cutout Overview . . . . 344
Type 12, 13 Fixed-Depth AB Disconnects
Allen-Bradley® 1494 Cutout Disconnect Enclosure,
Type 12 .........................................345
Disconnect Mounting Space . . . . . . . . . . . . . . . . . . . . .347
Free-Stand Preferred-Cutout Disconnect
Enclosures
Free-Stand Preferred-Cutout Disconnect Overview
Preferred-Cutout Overview . . . . . . . . . . . . . . . . . . . . . .348
Free-Stand Disconnect Enclosures and Accessories
Free-Stand Disconnect Enclosure, Type 1 . . . . . . . . .349
Disconnect Mounting Space . . . . . . . . . . . . . . . . . . . . .352
Gasket Kits .......................................352
PROLINE-DD Modular Enclosures and Accessories
PROLINE®-DD Disconnect Enclosure, Type 12 . . . . .353
Disconnect Mounting Space . . . . . . . . . . . . . . . . . . . . .355
PROLINE®-DD Modular Subpanel . . . . . . . . . . . . . . . . .355
PROLINE®-DD Modular 100-mm Bases . . . . . . . . . . . .355
Free-Stand Stainless Steel Preferred-
Cutout Disconnect Enclosures
Free-Stand Preferred-Cutout Stainless Steel
Disconnect Overview
Preferred-Cutout Overview . . . . . . . . . . . . . . . . . . . . . .356
Stainless Steel Two-Door Disconnect Enclosure
Two-Door Stainless Steel Enclosures for Flange-
Mounted Disconnects, Type 4X . . . . . . . . . . . . . . . . .357
Disconnect Mounting Space . . . . . . . . . . . . . . . . . . . . .360
Stainless Steel General Purpose Disconnect
Enclosures
General Purpose Stainless Steel Two-Door
Floor-Mount Disconnect Enclosures, Type 4X . . .362
General Purpose Single-Door Free-Stand
Disconnect, Type 4X ............................364
Disconnect Mounting Space . . . . . . . . . . . . . . . . . . . . .366
Stainless Steel Heavy Duty Disconnect Enclosures
Stainless Steel Heavy-Duty Free-Stand Enclosures
for Flange-Mount Disconnects, Type 4X . . . . . . . . .368
Disconnect Mounting Space . . . . . . . . . . . . . . . . . . . . .374
Homan WATERSHED® Stainless Steel
Homan WATERSHED® Free-Standing SS
Disconnect Enclosures . . . . . . . . . . . . . . . . . . . . . . . . . .376
Disconnect Mounting Space . . . . . . . . . . . . . . . . . . . . .378
Sanitary Leg Kits .................................379
Free-Stand Universal-Cutout Disconnect
Enclosures
Free-Stand Universal-Cutout Disconnect Overview
Universal Cutout Overview . . . . . . . . . . . . . . . . . . . . . . .380
Free-Stand Type 12 Disconnect Enclosures
Two-Door with Floor Stands Disconnect
Enclosure, Type 12 ..............................381
Disconnect Mounting Space . . . . . . . . . . . . . . . . . . . . .385
Heavy-Duty Free-Stand Disconnect Enclosure,
Type 12 .........................................386
Disconnect Mounting Space . . . . . . . . . . . . . . . . . . . . .396
Type 12 Modular Free-Stand Disconnect Enclosures
and Accessories
Modular Disconnect Enclosure, Type 12 . . . . . . . . . .398
Disconnect Mounting Space . . . . . . . . . . . . . . . . . . . . .403
End Plates ....................................... 404
Flat End Plates .................................. 404
Barriers ..........................................405
Gasket Kit ........................................405
SEQUESTR® Preferred-Cutout Disconnect
Enclosures
SEQUESTR® External Disconnect Preferred-Cutout
Overview
SEQUESTR® Preferred-Cutout Overview . . . . . . . . . 406
SEQUESTR® External Disconnect Enclosures
SEQUESTR® External Disconnect Enclosure,
Type 12 .........................................407
SEQUESTR® External Disconnect Enclosure
Package, Type 12 .............................. 408
Disconnect Mounting Space . . . . . . . . . . . . . . . . . . . . . 415
Disconnect Enclosure Accessories
Accessories for Free-Stand or Floor-Mount
Disconnect Enclosures
Operator Adapters for Universal Cutouts . . . . . . . . .416
Operator Adapters for Preferred Cutouts . . . . . . . . . 416
Blank Adapter Plates, Mild Steel . . . . . . . . . . . . . . . . . . 416
Blank Adapter Plates, Stainless Steel . . . . . . . . . . . . . . 417
Enclosure Stabilizers .............................417
Platform Assembly ...............................417

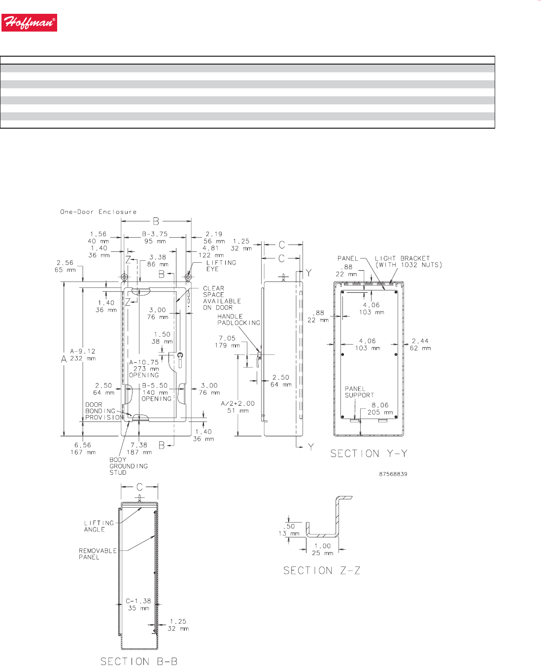
312
Disconnect: Wall-Mount Preferred-Cutout Disconnect Enclosures
Wall-Mount Preferred-Cutout Overview
PH (763) 422-2211 • FX (763) 422-2600 • homanonline.com
Subject to change without notice © 2011 Pentair Technical Products
Disconnect
Wall-Mount P referred -Cutout Di sconnect E nclosure s
Wall-Mount P referred -Cutout Ove rview
Preferred-Cutout Overview
Application
Enclosures having the preferred cutout are sized for use with up to
200A disconnect switches and up to 400A circuit breakers unless
otherwise specied. The preferred cutout accepts the smaller
operating handle whose mounting hole centers are 4.688 in. apart.
Preferred cutouts are standard in mild steel wall-mount enclosures,
modular enclosures and some select large mild steel enclosures.
They are also present on all standard stainless steel oerings. Mild
steel operator adapter plates with brand specic preferred cutouts
are available for enclosures with a rectangular universal cutout.
Preferred cutouts are designed to house the following:
Allen-Bradley
• Bulletin 1494V disconnect switches with ange-mount variable-
depth operating mechanisms and Bulletin 1494V ange-mount
variable-depth operating mechanisms for circuit breakers
• Bulletin 140U exible cable operating mechanisms for 140U
molded case circuit breakers
• Bulletin 1494C cable-operated disconnect switches with ange-
mount handles
• Bulletin 194RC cable-operated ange-mount handles for use with
the NFPA 79 compliant 194R IEC rotary disconnect switches
Allen-Bradley Bulletin 1494V-R1, -R2 and -W2 operating handles and
Allen-Bradley Bulletin 1494F disconnect devices or Bulletin 1494D circuit
breaker operators will NOT t these enclosures.
ABB Controls ange-mount variable-depth operating mechanisms
for disconnect switches and circuit breakers. Also the cable version
for circuit breakers.
Eaton Cutler-Hammer Type C361 ange-mount variable-depth
operating mechanisms with disconnect switches and Type C371
ange-mount variable-depth operating mechanisms for circuit
breakers.
General Electric Type STDA ange handles and variable-depth
operating mechanisms for disconnect switches and circuit breakers.
Also SPECTRAFLEX™ cable operators for circuit breakers.
Siemens ITE MAX FLEX® ange-mount variable-depth operating
handles for circuit breakers.
Schneider Square D® Class 9422 disconnect switches with ange-
mount variable-depth operating mechanisms or cable mechanisms
and Class 9422 ange-mount variable-depth operating mechanisms
or cable mechanisms for circuit breakers.
These enclosures will NOT accept Square D Class 9422 bracket-mounted
disconnect devices, Class 9422TG1 or TG2 devices.
Ordering
The disconnect switch, operating handle, and operating mechanism
must be ordered from disconnect equipment supplier. See Technical
Information in the Homan Specier’s Guide for wire bend space
available when various manufacturers’ disconnect switches are
installed, or Disconnect Ordering Information at homanonline.com
for disconnect ordering guidelines and wire bend space available.
Check the enclosure dimension drawings to verify the chosen
disconnect switch will t in the enclosure.

313
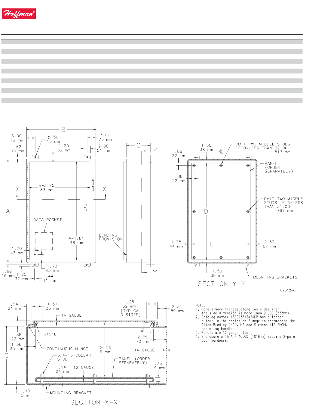
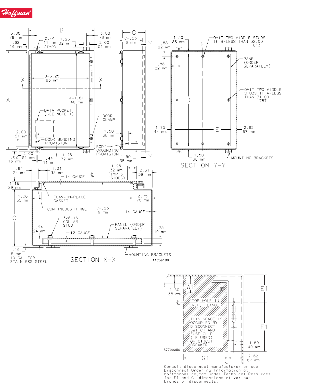
Disconnect: Wall-Mount Preferred-Cutout Disconnect Enclosures
Preferred Cutout, Disconnect Enclosure, Type 12
PH (763) 422-2211 • FX (763) 422-2600 • homanonline.com
Subject to change without notice © 2011 Pentair Technical Products
Preferred Cuto ut, Disco nnect Encl osure, Type 12
Preferred Cutout, Disconnect Enclosure, Type 12
Industry Standards
UL 508A Listed; Type 12, 13; File No. E61997
cUL Listed per CSA C22.2 No. 94; Type 12, 13; File No. E61997
NEMA/EEMAC Type 12, 13
CSA File No. 42186: Type 12
IEC 60529, IP65
Application
These general purpose disconnect enclosures accept major brand
disconnect switches and circuit breakers, available with or without
the Homan-supplied defeater door handle and handle hardware.
Features
• Includes latch pivot post(s) and cover interlock bracket welded
to door, cover latch bar for door, and instructions for installing
disconnects
• Model numbers ending with “PL” include handle and handle
latching hardware
Specications
• 14 gauge steel
• Seams continuously welded and ground smooth
• Bonding provision on door
• External mounting brackets
• External-formed ange around all sides of enclosure opening
• Removable door with continuous hinge
• Data pocket is high impact thermoplastic
• Oil-resistant gasket
• Collar studs for mounting optional panels
• Holes in body and door for mounting operating handle, operating
mechanism, and door closing mechanism
• Available with or without Homan supplied padlocking defeater
handle and latching system
Finish
White inside with ANSI 61 gray outside nish.
Accessories
See also Accessories.
Blank Adapter Plates, Mild Steel
Compact Cooling Fans
PANELITE™ Enclosure Lights Overview
Panels for Type 3R, 4, 4X, 12 and 13 Enclosures
POWERGLIDE® Defeater Handle Kit
Steel and Stainless Steel Window Kits
Ordering
Note: Some exible cable operating mechanisms may not work
in 8-in. deep enclosures due to interference with cable control
hardware on inside of ange.
Depending on model, order as follows:
PL models:
• Operating mechanism and disconnect switch or circuit breakers
• Operating handle
All other models:
• Operating mechanism and disconnect switch or circuit breakers
• Operating handle
• POWERGLIDE® Defeater Handle Kit
—or—
• Operating mechanism and disconnect switch or circuit breakers
• Operating handle
• Door hardware
Modication and Customization
Homan excels at modifying and customizing products to your
specications. Contact your local Homan sales oce or distributor
for complete information.
Bulletin: A25

314
Disconnect: Wall-Mount Preferred-Cutout Disconnect Enclosures
Preferred Cutout, Disconnect Enclosure, Type 12
PH (763) 422-2211 • FX (763) 422-2600 • homanonline.com
Subject to change without notice © 2011 Pentair Technical Products
Standard Product
Catalog Number AxBxC in. AxBxC mm Footnotes With or Without Handle Panel Conductive Panel
Panel Size
D x E (in.)
Panel Size
D x E (mm)
Data Pocket Size
D x E (in.)
Data Pocket Size
D x E (mm)
A20SA2208LP 20.00 x 21.38 x 8.00 508 x 543 x 203 — Without A20P20 A20P20G 17.00 x 17.00 432 x 432 6.00 x 6.00 152 x 152
A20SA2208LPPL 20.00 x 21.38 x 8.00 508 x 543 x 203 — With A20P20 A20P20G 17.00 x 17.00 432 x 432 6.00 x 6.00 152 x 152
A24SA2208LP 24.00 x 21.38 x 8.00 610 x 543 x 203 — Without A24P20 A24P20G 21.00 x 17.00 533 x 432 6.00 x 6.00 152 x 152
A24SA2208LPPL 24.00 x 21.38 x 8.00 610 x 543 x 203 — With A24P20 A24P20G 21.00 x 17.00 533 x 432 6.00 x 6.00 152 x 152
A24SA2608LP 24.00 x 25.38 x 8.00 610 x 645 x 203 — Without A24P24 A24P24G 21.00 x 21.00 533 x 533 6.00 x 6.00 152 x 152
A24SA2608LPPL 24.00 x 25.38 x 8.00 610 x 645 x 203 — With A24P24 A24P24G 21.00 x 21.00 533 x 533 6.00 x 6.00 152 x 152
A30SA2208LP 30.00 x 21.38 x 8.00 762 x 543 x 203 — Without A30P20 A30P20G 27.00 x 17.00 686 x 432 6.00 x 6.00 152 x 152
A30SA2208LPPL 30.00 x 21.38 x 8.00 762 x 543 x 203 — With A30P20 A30P20G 27.00 x 17.00 686 x 432 6.00 x 6.00 152 x 152
A30SA2608LP 30.00 x 25.38 x 8.00 762 x 645 x 203 — Without A30P24 A30P24G 27.00 x 21.00 686 x 533 12.00 x 12.00 305 x 305
A30SA2608LPPL 30.00 x 25.38 x 8.00 762 x 645 x 203 — With A30P24 A30P24G 27.00 x 21.00 686 x 533 12.00 x 12.00 305 x 305
A36SA2608LP 36.00 x 25.38 x 8.00 914 x 645 x 203 — Without A36P24 A36P24G 33.00 x 21.00 838 x 533 12.00 x 12.00 305 x 305
A36SA2608LPPL 36.00 x 25.38 x 8.00 914 x 645 x 203 — With A36P24 A36P24G 33.00 x 21.00 838 x 533 12.00 x 12.00 305 x 305
A36SA3208LP 36.00 x 31.38 x 8.00 914 x 797 x 203 — Without A36P30 A36P30G 33.00 x 27.00 838 x 686 12.00 x 12.00 305 x 305
A36SA3208LPPL 36.00 x 31.38 x 8.00 914 x 797 x 203 — With A36P30 A36P30G 33.00 x 27.00 838 x 686 12.00 x 12.00 305 x 305
A42SA3208LP 42.00 x 31.38 x 8.00 1067 x 810 x 203 — Without A42P30 A42P30G 39.00 x 27.00 991 x 686 6.00 x 6.00 152 x 152
A42SA3208LPPL 42.00 x 31.38 x 8.00 1067 x 810 x 203 — With A42P30 A42P30G 39.00 x 27.00 991 x 686 6.00 x 6.00 152 x 152
A42SA3808LP 42.00 x 37.38 x 8.00 1067 x 949 x 203 — Without A42P36 A42P36G 39.00 x 33.00 991 x 838 12.00 x 12.00 305 x 305
A42SA3808LPPL 42.00 x 37.38 x 8.00 1067 x 949 x 203 — With A42P36 A42P36G 39.00 x 33.00 991 x 838 12.00 x 12.00 305 x 305
A48SA3808LP 48.00 x 37.38 x 8.00 1219 x 949 x 203 — Without A48P36 A48P36G 45.00 x 33.00 1143 x 838 12.00 x 12.00 305 x 305
A48SA3808LPPL 48.00 x 37.38 x 8.00 1219 x 949 x 203 — With A48P36 A48P36G 45.00 x 33.00 1143 x 838 12.00 x 12.00 305 x 305
A60SA3808LP 60.00 x 37.38 x 8.00 1524 x 949 x 203 — Without A60P36 A60P36G 57.00 x 33.00 1448 x 838 12.00 x 12.00 305 x 305
A60SA3808LPPL 60.00 x 37.38 x 8.00 1524 x 949 x 203 — With A60P36 A60P36G 57.00 x 33.00 1448 x 838 12.00 x 12.00 305 x 305
A20SA2210LP 20.00 x 21.38 x 10.00 508 x 543 x 254 — Without A20P20 A20P20G 17.00 x 17.00 432 x 432 6.00 x 6.00 152 x 152
A20SA2210LPPL 20.00 x 21.38 x 10.00 508 x 543 x 254 — With A20P20 A20P20G 17.00 x 17.00 432 x 432 6.00 x 6.00 152 x 152
A24SA2210LP 24.00 x 21.38 x 10.00 610 x 543 x 254 — Without A24P20 A24P20G 21.00 x 17.00 533 x 432 6.00 x 6.00 152 x 152
A24SA2210LPPL 24.00 x 21.38 x 10.00 610 x 543 x 254 — With A24P20 A24P20G 21.00 x 17.00 533 x 432 6.00 x 6.00 152 x 152
A24SA2610LP 24.00 x 25.38 x 10.00 610 x 645 x 254 — Without A24P24 A24P24G 21.00 x 21.00 533 x 533 6.00 x 6.00 152 x 152
A24SA2610LPPL 24.00 x 25.38 x 10.00 610 x 645 x 254 — With A24P24 A24P24G 21.00 x 21.00 533 x 533 6.00 x 6.00 152 x 152
A30SA2210LP 30.00 x 21.38 x 10.00 762 x 543 x 254 — Without A30P20 A30P20G 27.00 x 17.00 686 x 432 6.00 x 6.00 152 x 152
A30SA2210LPPL 30.00 x 21.38 x 10.00 762 x 543 x 254 — With A30P20 A30P20G 27.00 x 17.00 686 x 432 6.00 x 6.00 152 x 152
A30SA2610LP 30.00 x 25.38 x 10.00 762 x 645 x 254 — Without A30P24 A30P24G 27.00 x 21.00 686 x 533 12.00 x 12.00 305 x 305
A30SA2610LPPL 30.00 x 25.38 x 10.00 762 x 645 x 254 — With A30P24 A30P24G 27.00 x 21.00 686 x 533 12.00 x 12.00 305 x 305
A36SA2610LP 36.00 x 25.38 x 10.00 914 x 645 x 254 — Without A36P24 A36P24G 33.00 x 21.00 838 x 533 12.00 x 12.00 305 x 305
A36SA2610LPPL 36.00 x 25.38 x 10.00 914 x 645 x 254 — With A36P24 A36P24G 33.00 x 21.00 838 x 533 12.00 x 12.00 305 x 305
A36SA3210LP 36.00 x 31.38 x 10.00 914 x 797 x 254 — Without A36P30 A36P30G 33.00 x 27.00 838 x 686 12.00 x 12.00 305 x 305
A36SA3210LPPL 36.00 x 31.38 x 10.00 914 x 797 x 254 — With A36P30 A36P30G 33.00 x 27.00 838 x 686 12.00 x 12.00 305 x 305
A42SA3210LP 42.00 x 31.38 x 10.00 1067 x 797 x 254 — Without A42P30 A42P30G 39.00 x 27.00 991 x 686 6.00 x 6.00 152 x 152
A42SA3210LPPL 42.00 x 31.38 x 10.00 1067 x 797 x 254 — With A42P30 A42P30G 39.00 x 27.00 991 x 686 6.00 x 6.00 152 x 152
A42SA3810LP 42.00 x 37.38 x 10.00 1067 x 949 x 254 — Without A42P36 A42P36G 39.00 x 33.00 991 x 838 12.00 x 12.00 305 x 305
A42SA3810LPPL 42.00 x 37.38 x 10.00 1067 x 949 x 254 — With A42P36 A42P36G 39.00 x 33.00 991 x 838 12.00 x 12.00 305 x 305
A48SA2610LPPL 48.00 x 25.38 x 10.00 1219 x 645 x 254 — With A48P24 A48P24G 45.00 x 21.00 1143 x 533 12.00 x 12.00 305 x 305
A48SA3810LP 48.00 x 37.38 x 10.00 1219 x 949 x 254 — Without A48P36 A48P24G 45.00 x 33.00 1143 x 838 12.00 x 12.00 305 x 305
A48SA3810LPPL 48.00 x 37.38 x 10.00 1219 x 949 x 254 — With A48P36 A48P24G 45.00 x 33.00 1143 x 838 12.00 x 12.00 305 x 305
A60SA3810LP 60.00 x 37.38 x 10.00 1524 x 949 x 254 — Without A60P36 A60P36G 57.00 x 33.00 1448 x 838 12.00 x 12.00 305 x 305
A60SA3810LPPL 60.00 x 37.38 x 10.00 1524 x 949 x 254 — With A60P36 A60P36G 57.00 x 33.00 1448 x 838 12.00 x 12.00 305 x 305
A60SA3812LPPL 60.00 x 37.38 x 12.00 1524 x 949 x 305 — With A60P36 A60P36G 57.00 x 33.00 1448 x 838 12.00 x 12.00 305 x 305
A36SA3216LPPL 36.00 x 31.38 x 16.00 914 x 797 x 406 — With A36P30 A36P30G 33.00 x 27.00 838 x 686 12.00 x 12.00 305 x 305
A42SA3216LPPL 42.00 x 31.38 x 16.00 1067 x 797 x 406 — With A42P30 A42P30G 39.00 x 27.00 991 x 686 6.00 x 6.00 152 x 152
A42SA3816LPPL 42.00 x 37.38 x 16.00 1067 x 949 x 406 — With A42P36 A42P36G 39.00 x 33.00 991 x 838 12.00 x 12.00 305 x 305
A48SA3816LPPL 48.00 x 37.38 x 16.00 1219 x 949 x 406 — With A48P36 A48P36G 45.00 x 33.00 1143 x 838 12.00 x 12.00 305 x 305
A60SA3816LP 60.00 x 37.38 x 16.00 1524 x 949 x 406 — Without A60P36 A60P36G 57.00 x 33.00 1448 x 838 12.00 x 12.00 305 x 305
A60SA3816LPPL 60.00 x 37.38 x 16.00 1524 x 949 x 406 — With A60P36 A60P36G 57.00 x 33.00 1448 x 838 12.00 x 12.00 305 x 305
A30SA2612LP 30.00 x 25.38 x 12.00 762 x 645 x 305 a Without A30P24 A30P24G 27.00 x 21.00 686 x 533 12.00 x 12.00 305 x 305
A30SA2612LPPL 30.00 x 25.38 x 12.00 762 x 645 x 305 a With A30P24 A30P24G 27.00 x 21.00 686 x 533 12.00 x 12.00 305 x 305
A36SA3212LP 36.00 x 31.38 x 12.00 914 x 797 x 305 a Without A36P30 A36P30G 33.00 x 27.00 838 x 686 12.00 x 12.00 305 x 305
A36SA3212LPPL 36.00 x 31.38 x 12.00 914 x 797 x 305 a With A36P30 A36P30G 33.00 x 27.00 838 x 686 12.00 x 12.00 305 x 305
A42SA3212LP 42.00 x 31.38 x 12.00 1067 x 797 x 305 a Without A42P30 A42P30G 39.00 x 27.00 991 x 686 6.00 x 6.00 152 x 152
A42SA3212LPPL 42.00 x 31.38 x 12.00 1067 x 797 x 305 a With A42P30 A42P30G 39.00 x 27.00 991 x 686 6.00 x 6.00 152 x 152
A42SA3812LP 42.00 x 37.38 x 12.00 1067 x 949 x 305 a Without A42P36 A42P36G 39.00 x 33.00 991 x 838 12.00 x 12.00 305 x 305
A42SA3812LPPL 42.00 x 37.38 x 12.00 1067 x 949 x 305 a With A42P36 A42P36G 39.00 x 33.00 991 x 838 12.00 x 12.00 305 x 305
A48SA3812LP 48.00 x 37.38 x 12.00 1219 x 949 x 305 a Without A48P36 A48P36G 45.00 x 33.00 1143 x 838 12.00 x 12.00 305 x 305
A48SA3812LPPL 48.00 x 37.38 x 12.00 1219 x 949 x 305 a With A48P36 A48P36G 45.00 x 33.00 1143 x 838 12.00 x 12.00 305 x 305
A60SA3812LP 60.00 x 37.38 x 12.00 1524 x 949 x 305 a Without A60P36 A60P36G 57.00 x 33.00 1448 x 838 12.00 x 12.00 305 x 305
A36SA3216LP 36.00 x 31.38 x 16.00 914 x 797 x 406 a Without A36P30 A36P30G 33.00 x 27.00 838 x 686 12.00 x 12.00 305 x 305
A48SA3816LP 48.00 x 37.38 x 16.00 1219 x 949 x 406 a Without A48P36 A48P36G 45.00 x 33.00 1143 x 838 12.00 x 12.00 305 x 305
A60SA3812A24LP 60.00 x 37.38 x 12.00 1524 x 949 x 305 b Without A60P36 A60P36G 57.00 x 33.00 1448 x 838 12.00 x 12.00 305 x 305
aWhen using a Siemens ITE circuit breaker and an enclosure with an A dimension of 30-, 36- or 42-in., verify the amount of wire bend space required for both the line and load sides. Enclosures 12- and 16-in. deep can be
modied to accept Siemens ITE 800 A and 1200 A circuit breakers. (Consult factory for details.)
bCatalog number A60SA3812A24LP enclosure will receive only 400 A and 600 A Allen-Bradley Bulletin 1494V disconnect switches, and Siemens ITE 800 Amp and 1200 Amp circuit breakers. The 400 Amp and 600 Amp Allen-
Bradley disconnect switch will not t any other size enclosure from the Bulletin A25 family. Blank Adapter Plates will not t catalog number A60SA3812A24LP.
Purchase panels separately.

315
Disconnect: Wall-Mount Preferred-Cutout Disconnect Enclosures
Preferred Cutout, Disconnect Enclosure, Type 12
PH (763) 422-2211 • FX (763) 422-2600 • homanonline.com
Subject to change without notice © 2011 Pentair Technical Products
Table 430.10(B) Minimum Wire Bending Space at the Terminals of Enclosed Motor Controllers
Size of Wire (AWG or kcmil) Wires per Terminal 1 (mm) Wires per Terminal 1 (in.) Wires per Terminal 2(mm) Wires per Terminal 2 (in.)
14-10 Not specied Not specied — —
8-6 30 1.5 — —
4-3 50 2 — —
2 65 2.5 — —
1 75 3 — —
1/0 125 5 125 5
2/0 150 6 150 6
3/0-4/0 175 7 175 7
250 200 8 200 8
300 250 10 250 10
350-500 300 12 300 12
600-700 350 14 400 16
750-900 450 18 475 19
This table is reproduced with permission from NRPA 2005-70, National Electrical Code, copyright 2005, National Fire Protection Association, Quincy, MA 02269. This reprinted
material is not the complete and ocial position of the NFPA on the referenced subject which is represented only by the standard in its entirety.
Where provision for 3 or more wires per terminal exists, the minimum wire bending space shall be in accordance with the requirements of Article 312.

316
Disconnect: Wall-Mount Preferred-Cutout Disconnect Enclosures
Preferred Cutout, Disconnect Enclosure, Type 12
PH (763) 422-2211 • FX (763) 422-2600 • homanonline.com
Subject to change without notice © 2011 Pentair Technical Products
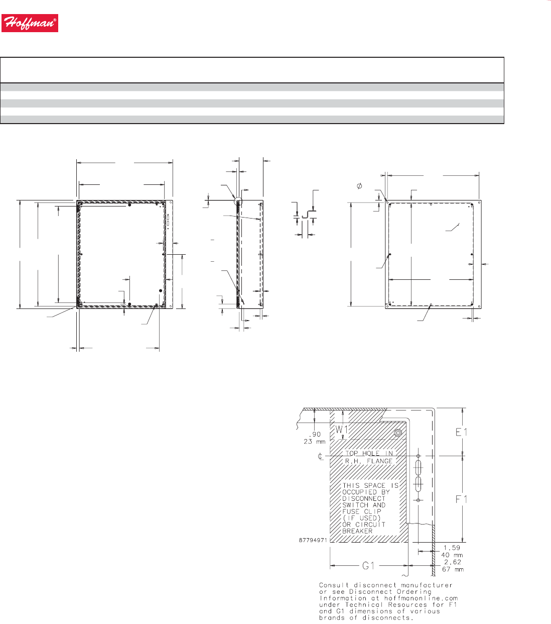
Disconnect Mounting Space
Disconnects will occupy space on panel shown by dimensions E1, F1
and G1 in Disconnect Mounting Space diagram. Wiring space W1 is
available when disconnect is installed in the enclosure.
E1 = 4.75 in. (121 mm) when C = 8.00 in. (203 mm)
E1 = 7.09 in. (180 mm) when C =10.00 in. (254 mm)
E1 = 11.62 in. (294 mm) when C = 12.00 in. (305 mm)
E1 = 11.62 in. (294 mm) when C = 16.00 in. (406 mm)
E1 = 18.38 in. (467 mm) for A60SA3812A24LP
W1 = Wiring Space.
See Technical Information for wire bend space.
Refer to NATIONAL ELECTRICAL CODE 2005 article 430.10(B) for
wiring space required for line side conductors to be connected to
disconnect.
Verify your application to determine if wiring space is adequate.
POWERGLIDE® Defeater Handle Kit
This clockwise defeater model
includes door hardware for Bulletin
A25 enclosures.
Bulletin: A80
Catalog Number Description
AL55CWD Medium POWERGLIDE Handle - Clockwise opening with defeater and door hardware

317
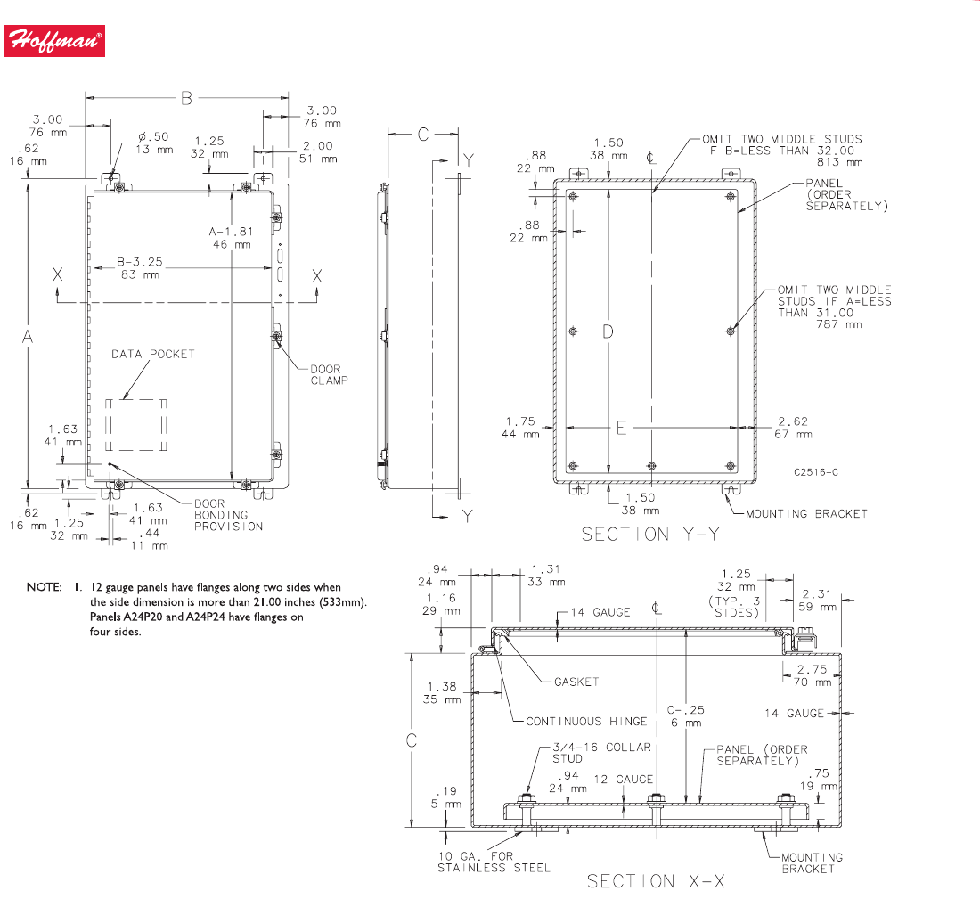
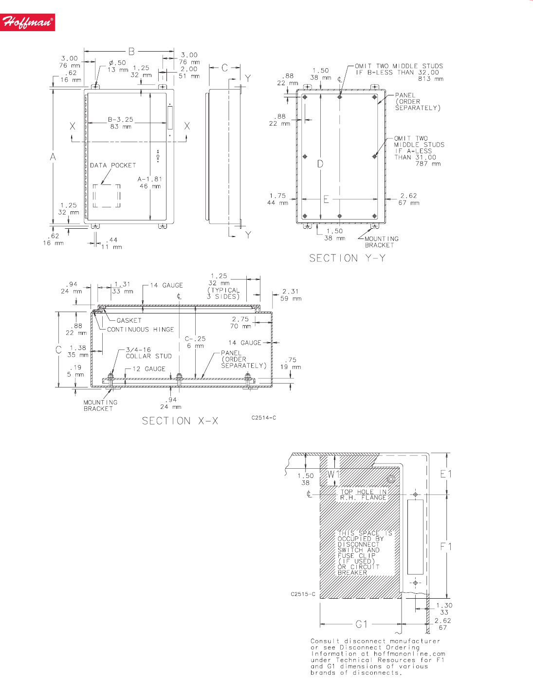
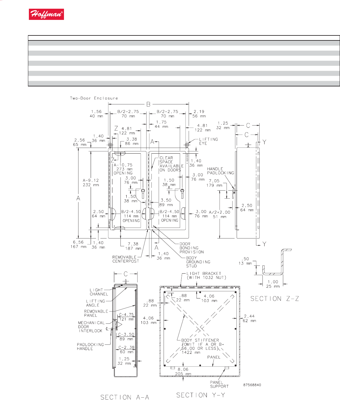
Disconnect: Wall-Mount Preferred-Cutout Disconnect Enclosures
CONCEPT® Wall-Mount Disconnect Enclosures
PH (763) 422-2211 • FX (763) 422-2600 • homanonline.com
Subject to change without notice © 2011 Pentair Technical Products
CONCEPT® Wall -Mount Di sconnec t Enclosur es
CONCEPT® Disconnect Enclosure, Type 4
Industry Standards
Mounting brackets required to maintain UL/CSA external mounting
requirement.
UL 508A Listed; Type 4, 12; File No. E61997
cUL Listed per CSA C22.2 No. 94; Type 4, 12; File No. E61997
NEMA/EEMAC Type 4, 12, Type 13
CSA File No. 42186: Type 4, 12
VDE, IP66
IEC 60529, IP66
Application
Use CONCEPT® Disconnect Enclosures in applications that require
stylized design features and a preferred cutout for the disconnect
switch or circuit breaker. Accepts major brand disconnect switches
and circuit breakers and is supplied with a Homan-integrated tool-
to-open handle.
Furnished with Enclosures
1. Door interlock bracket welded to door
2. Door latching system (2-point or 3-point) installed on door
3. Instructions to locate and install disconnect
4. Hardware kit consisting of padlocking door handle, panel
mounting nuts, grounding hardware and sealing washers for
mounting holes
Specications
• 16 or 14 gauge steel (see table)
• Seams continuously welded and ground smooth
• External-formed 90-degree body ange
• Bonding provision on door; grounding stud on body
•
Holes provided in body for mounting disconnect operating handle
and operating mechanism
• Panel mounting studs t optional CONCEPT panels and other
accessories
•
Mounting holes in back of body for direct mounting or for optional
external mounting brackets
• Hidden hinges for clean, aesthetic appearance
• Removable corner-formed doors
• Provisions on door for optional high-impact thermoplastic data
pocket
• Seamless foam-in-place gasket
• Door alignment device on doors wider than 30 in.
• Latching system interlocks with the disconnect handle for added
safety
• Unique integrated door handle with tool-to-open feature and
padlocking option
• Self-grounding latch system with double seal
• Four hinges on 60-inch-high doors
• Simple easy-to-remove and install hinge pins with built-in
captivation clip
• High-torque threadless studs and fasteners on door
• Illustrated instruction sheet included
Finish
Two standard nishes are available:
• ANSI 61 gray polyester powder coating inside and out
• RAL 7035 textured light-gray polyester powder coating inside and
out
Accessories
See also Accessories.
Blank Adapter Plates, Mild Steel
Compact Cooling Fans
PANELITE™ Enclosure Lights Overview
CONCEPT® Panels
Mounting-Bracket Kits
Steel and Stainless Steel Window Kits
Modication and Customization
Homan excels at modifying and customizing products to your
specications. Contact your local Homan sales oce or distributor
for complete information.
Bulletin: CWD

318
Disconnect: Wall-Mount Preferred-Cutout Disconnect Enclosures
CONCEPT® Wall-Mount Disconnect Enclosures
PH (763) 422-2211 • FX (763) 422-2600 • homanonline.com
Subject to change without notice © 2011 Pentair Technical Products
Standard Product
Catalog Number AxBxC in./mm Finish
Door
Gauge
Body
Gauge CONCEPT Panel Conductive Panel
Panel Size
D x E
in./mm
Mounting
G x H
in./mm
Latches
Qty.
Latches
Style
J
in./mm
CDSC20228 20.00 x 22.00 x 8.00
508 x 559 x 203
ANSI 61 Gray 14 16 CP2020 CP2020G 18.20 x 18.20
462 x 462
18.50 x 20.50
470 x 521
1 2-point 5.00
127
CDSC20228LG 20.00 x 22.00 x 8.00
508 x 559 x 203
RAL 7035 Gray 14 16 CP2020 CP2020G 18.20 x 18.20
462 x 462
18.50 x 20.50
470 x 521
1 2-point 5.00
127
CDSC24228 24.00 x 22.00 x 8.00
610 x 559 x 203
ANSI 61 Gray 14 16 CP2420 CP2420G 22.20 x 18.20
564 x 462
22.50 x 20.50
572 x 521
1 2-point 6.00
152
CDSC24228LG 24.00 x 22.00 x 8.00
610 x 559 x 203
RAL 7035 Gray 14 16 CP2420 CP2420G 22.20 x 18.20
564 x 462
22.50 x 20.50
572 x 521
1 2-point 6.00
152
CDSC24268 24.00 x 26.00 x 8.00
610 x 660 x 203
ANSI 61 Gray 14 16 CP2424 CP2424G 22.20 x 22.20
564 x 564
22.50 x 24.50
572 x 622
1 2-point 6.00
152
CDSC24268LG 24.00 x 26.00 x 8.00
610 x 660 x 203
RAL 7035 Gray 14 16 CP2424 CP2424G 22.20 x 22.20
564 x 564
22.50 x 24.50
572 x 622
1 2-point 6.00
152
CDSC30268 30.00 x 26.00 x 8.00
762 x 660 x 203
ANSI 61 Gray 14 16 CP3024 CP3024G 28.20 x 22.20
716 x 564
28.50 x 24.50
724 x 622
1 2-point 6.00
152
CDSC30268LG 30.00 x 26.00 x 8.00
762 x 660 x 203
RAL 7035 Gray 14 16 CP3024 CP3024G 28.20 x 22.20
716 x 564
28.50 x 24.50
724 x 622
1 2-point 6.00
152
CDSC36268 36.00 x 26.00 x 8.00
914 x 660 x 203
ANSI 61 Gray 14 14 CP3624 CP3624G 34.20 x 22.20
869 x 564
34.50 x 24.50
876 x 622
1 2-point 6.00
152
CDSC36268LG 36.00 x 26.00 x 8.00
914 x 660 x 203
RAL 7035 Gray 14 14 CP3624 CP3624G 34.20 x 22.20
869 x 564
34.50 x 24.50
876 x 622
1 2-point 6.00
152
CDSC36328 36.00 x 32.00 x 8.00
914 x 813 x 203
ANSI 61 Gray 14 14 CP3630 CP3630G 34.20 x 28.20
869 x 716
34.50 x 30.50
869 x 775
1 2-point 6.00
152
CDSC36328LG 36.00 x 32.00 x 8.00
914 x 813 x 203
RAL 7035 Gray 14 14 CP3630 CP3630G 34.20 x 28.20
869 x 716
34.50 x 30.50
869 x 775
1 2-point 6.00
152
CDSC423212 42.00 x 32.00 x 12.00
1067 x 813 x 305
ANSI 61 Gray 14 14 CP4230 CP4230G 40.20 x 28.20
1021 x 716
40.50 x 30.50
1029 x 775
1 3-point 21.00
533
CDSC423212LG 42.00 x 32.00 x 12.00
1067 x 813 x 305
RAL 7035 Gray 14 14 CP4230 CP4230G 40.20 x 28.20
1021 x 716
40.50 x 30.50
1029 x 775
1 3-point 21.00
533
CDSC423812 42.00 x 38.00 x 12.00
1067 x 965 x 305
ANSI 61 Gray 14 14 CP4236 CP4236G 40.20 x 34.20
1021 x 869
40.50 x 36.50
1029 x 927
1 3-point 21.00
533
CDSC423812LG 42.00 x 38.00 x 12.00
1067 x 965 x 305
RAL 7035 Gray 14 14 CP4236 CP4236G 40.20 x 34.20
1021 x 869
40.50 x 36.50
1029 x 927
1 3-point 21.00
533
CDSC483812 48.00 x 38.00 x 12.00
1219 x 965 x 305
ANSI 61 Gray 14 14 CP4836 CP4836G 46.20 x 34.20
1173 x 869
46.50 x 36.50
1181 x 927
1 3-point 24.00
610
CDSC483812LG 48.00 x 38.00 x 12.00
1219 x 965 x 305
RAL 7035 Gray 14 14 CP4836 CP4836G 46.20 x 34.20
1173 x 869
46.50 x 36.50
1181 x 927
1 3-point 24.00
610
CDSC603812 60.00 x 38.00 x 12.00
1524 x 965 x 305
ANSI 61 Gray 14 14 CP6036 CP6036G 58.20 x 34.20
1478 x 869
58.50 x 36.50
1486 x 927
1 3-point 30.00
762
CDSC603812LG 60.00 x 38.00 x 12.00
1524 x 965 x 305
RAL 7035 Gray 14 14 CP6036 CP6036G 58.20 x 34.20
1478 x 869
58.50 x 36.50
1486 x 927
1 3-point 30.00
762
Purchase panels separately.

319
Disconnect: Wall-Mount Preferred-Cutout Disconnect Enclosures
CONCEPT® Wall-Mount Disconnect Enclosures
PH (763) 422-2211 • FX (763) 422-2600 • homanonline.com
Subject to change without notice © 2011 Pentair Technical Products
CONCEPT® Disconnect Enclosure, Type 4X
Industry Standards
Mounting brackets required to meet UL/cUL external mounting
requirement.
UL 508A Listed; Type 3R, 4, 4X, 12; File No. E61997
cUL Listed per CSA C22.2 No. 94; Type 3R, 4, 4X, 12; File No.
E61997
NEMA/EEMAC Type 3R, 4, 4X, 12, 13
IEC 60529, IP66
Meets NEMA Type 3RX requirements
Application
Use CONCEPT® Disconnect Enclosures in applications that require
stylized design features and a preferred cutout that accepts major
brand disconnect switches and circuit breakers.
Furnished with Enclosures
1. Door interlock bracket welded to door
2. Door latching system (2-point or 3-point) installed on door
3. Instructions to locate and install disconnect
4. Hardware kit consisting of padlocking door handle, panel
mounting nuts, grounding hardware and sealing washers for
mounting holes
Specications
• 14 and 16 gauge Type 304 or 316L stainless steel
• Seams continuously welded and ground smooth
• External-formed 90-degree body ange
• Integral door ramp to properly align door and gasket to body
ange
• Holes provided in right-hand ange are for mounting disconnect
operating handle and operating mechanism
• Panel mounting studs t optional CONCEPT panels and other
accessories (purchase panels separately)
•
Mounting holes in back of body for direct mounting or for optional
external mounting brackets
• Stainless steel hidden hinges
• Standard full-access door opening
• Corner formed doors are interchangeable and easily removable by
pulling captive hinge pins
• Provisions on door for optional high-impact thermoplastic data
pocket
• Seamless foam-in-place gasket
• Door latching system (2- or 3-point) installed on door interlocks
with disconnect handle for added safety
• Interlock bracket welded to door
• Unique integrated door handle with tool-to-open feature and
padlock option installed on door
• Self-grounding latch system with double seal
• Bonding provision on door; grounding stud on body
•
Includes hardware kit (consisting of padlocking door handle, panel
mounting nuts, grounding hardware and sealing washers for
mounting holes) and instructions for installing disconnects
Finish
Sides, top bottom and door have smooth #4 brushed nish. Handle is
die-cast with black textured polyester powder paint.
Accessories
See also Accessories.
Blank Adapter Plates, Stainless Steel
Compact Cooling Fans
Mounting-Bracket Kits
PANELITE™ Enclosure Lights Overview
CONCEPT® Panels
Steel and Stainless Steel Window Kits
Modication and Customization
Homan excels at modifying and customizing products to your
specications. Contact your local Homan sales oce or distributor
for complete information.
Bulletin: CWSD

320
Disconnect: Wall-Mount Preferred-Cutout Disconnect Enclosures
CONCEPT® Wall-Mount Disconnect Enclosures
PH (763) 422-2211 • FX (763) 422-2600 • homanonline.com
Subject to change without notice © 2011 Pentair Technical Products
Standard Product
Catalog Number AxBxC in./mm
Stainless
Steel
Type
Door
Gauge Body Gauge CONCEPT Panel Conductive Panel
Panel Size
D x E
in./mm
Mounting
G x H
in./mm
Latches
Style
J
in./mm
CDSC20228SS 20.00 x 22.00 x 8.00
508 x 559 x 203
304 14 16 CP2020 CP2020G 18.20 x 18.20
462 x 462
18.50 x 20.50
470 x 521
1 - 2 point 5.00
127
CDSC24228SS 24.00 x 22.00 x 8.00
610 x 559 x 203
304 14 16 CP2420 CP2420G 22.20 x 18.20
564 x 462
22.50 x 20.50
572 X 521
1 - 2 point 6.00
152
CDSC24268SS 24.00 x 26.00 x 8.00
610 x 660 x 203
304 14 16 CP2424 CP2424G 22.20 x 22.20
564 x 564
22.50 x 24.50
572 x 622
1 - 2 point 6.00
152
CDSC30268SS 30.00 x 26.00 x 8.00
762 x 660 x 203
304 14 16 CP3024 CP3024G 28.20 x 24.50
716 x 564
28.50 x 24.50
724 x 622
1 - 2 point 6.00
152
CDSC36268SS 36.00 x 26.00 x 8.00
914 x 660 x 203
304 14 16 CP3624 CP3624G 32.20 x 22.20
869 x 564
34.50 x 24.50
876 x 622
1 - 2 point 6.00
152
Enclosure doors have 2 quarter-turn latches and a handle with 2- or 3-point latch.
Purchase panels separately. Optional plated CONCEPT panels available. Optional NEMA style and stainless steel panels require conversion kit catalog number CCPM4.

321
Disconnect: Wall-Mount Preferred-Cutout Disconnect Enclosures
CONCEPT® Wall-Mount Disconnect Enclosures
PH (763) 422-2211 • FX (763) 422-2600 • homanonline.com
Subject to change without notice © 2011 Pentair Technical Products
Notes

322
Disconnect: Wall-Mount Preferred-Cutout Disconnect Enclosures
CONCEPT® Wall-Mount Disconnect Enclosures
PH (763) 422-2211 • FX (763) 422-2600 • homanonline.com
Subject to change without notice © 2011 Pentair Technical Products
CONCEPT® with Quarter-Turn Latches Disconnect Enclosure, Type 4X
Industry Standards
Mounting brackets required to meet UL/cUL external mounting
requirement.
UL 508A Listed; Type 3R, 4, 4X, 12; File No. E61997
cUL Listed per CSA C22.2 No. 94; Type 3R, 4, 4X, 12; File No.
E61997
NEMA/EEMAC Type 3R, 4, 4X, 12, 13
IEC 60529, IP66
Meets NEMA Type 3RX requirements
Application
For use in disconnect applications that require larger controls and
stylized design features, CONCEPT® Disconnect Enclosures feature
two additional quarter-turn latches and a door-alignment device for
secure closure and security.
Furnished with Enclosures
1. Door interlock bracket welded to door
2. Door latching system (2-point or 3-point) installed on door
3. Instructions to locate and install disconnect
4. Hardware kit consisting of padlocking door handle, panel
mounting nuts, grounding hardware, and sealing washers for
mounting holes
Specications
• 14 gauge Type 304 stainless steel
• Seams continuously welded and ground smooth
• External-formed 90-degree body ange
• Integral door alignment device to properly align door and gasket
to body ange
•
Holes provided in body for mounting disconnect operating handle
and operating mechanism
• Panel mounting studs t optional CONCEPT panels and other
accessories (purchase panels separately)
•
Mounting holes in back of body for direct mounting or for optional
external mounting brackets
• Stainless steel hidden hinges
• Standard full-access door opening
• Corner-formed doors are interchangeable and easily removable by
pulling captive hinge pins
• Provisions on door for optional high-impact thermoplastic data
pocket
• Seamless foam-in-place gasket
• Door latching system (2- or 3-point) installed on door and
interlocks with the disconnect handle for added safety
• Interlock bracket welded to door
• Unique integrated door handle with tool-to-open feature and
padlock option installed on door
• Self-grounding latch system with double seal
• Bonding provision on door; grounding stud on body
•
Includes hardware kit (consisting of padlocking door handle, panel
mounting nuts, grounding hardware and sealing washers for
mounting holes) and instructions for installing disconnects
Finish
Sides and body have smooth #4 brushed nish. Optional mild steel
panels are painted white. Handle is die-cast with black textured
polyester powder paint.
Accessories
See also Accessories.
Blank Adapter Plates, Stainless Steel
Compact Cooling Fans
Mounting-Bracket Kits
PANELITE™ Enclosure Lights Overview
CONCEPT® Panels
Steel and Stainless Steel Window Kits
Modication and Customization
Homan excels at modifying and customizing products to your
specications. Contact your local Homan sales oce or distributor
for complete information.
Bulletin: CWSD

323
Disconnect: Wall-Mount Preferred-Cutout Disconnect Enclosures
CONCEPT® Wall-Mount Disconnect Enclosures
PH (763) 422-2211 • FX (763) 422-2600 • homanonline.com
Subject to change without notice © 2011 Pentair Technical Products
Standard Product
Catalog Number AxBxC in. AxBxC mm
Stainless
Steel
Type
Door
Gauge
Body
Gauge
CONCEPT
Panel
Conductive
Panel
Panel Size
D x E (in.)
Panel Size
D x E (mm)
Mounting
G x H (in.)
Mounting
G x H (mm)
Latches
Style J (in.) J (mm)
CDSC36328SSR 36.00 x 32.00 x 8.00 914 x 813 x 203 304 14 14 CP3630 CP3630G 34.20 x 28.20 869 x 716 34.50 x 30.50 869 x 775 1 - 2-point 6.00 152
CDSC423212SSR 42.00 x 32.00 x 12.00 1067 x 813 x 305 304 14 14 CP4230 CP4230G 40.20 x 28.20 1021 x 716 40.50 x 30.50 1029 x 775 1 - 3-point 21.00 533
CDSC423812SSR 42.00 x 38.00 x 12.00 1067 x 965 x 305 304 14 14 CP4236 CP4236G 40.20 x 34.20 1021 x 869 40.50 x 36.50 1029 x 927 1 - 3-point 21.00 533
CDSC483812SSR 48.00 x 38.00 x 12.00 1219 x 9656 x 305 304 14 14 CP4836 CP4836G 46.20 x 34.20 1173 x 869 46.50 x 36.50 1181 x 927 1 - 3-point 24.00 610
CDSC603812SSR 60.00 x 38.00 x 12.00 1524 x 965 x 305 304 14 14 CP6036 CP6036G 58.20 x 34.20 1478 x 869 58.50 x 36.50 1486 x 927 1 - 3-point 30.00 762
Enclosure doors have 2 quarter-turn latches and a handle with 2- or 3-point latch.
Purchase panels separately. Optional plated CONCEPT panels available. Optional NEMA style and stainless steel panels require conversion kit catalog number CCPM4.
PP
PP
PP
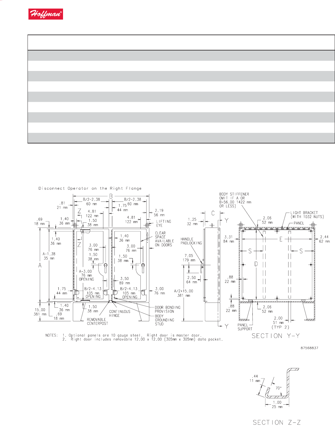
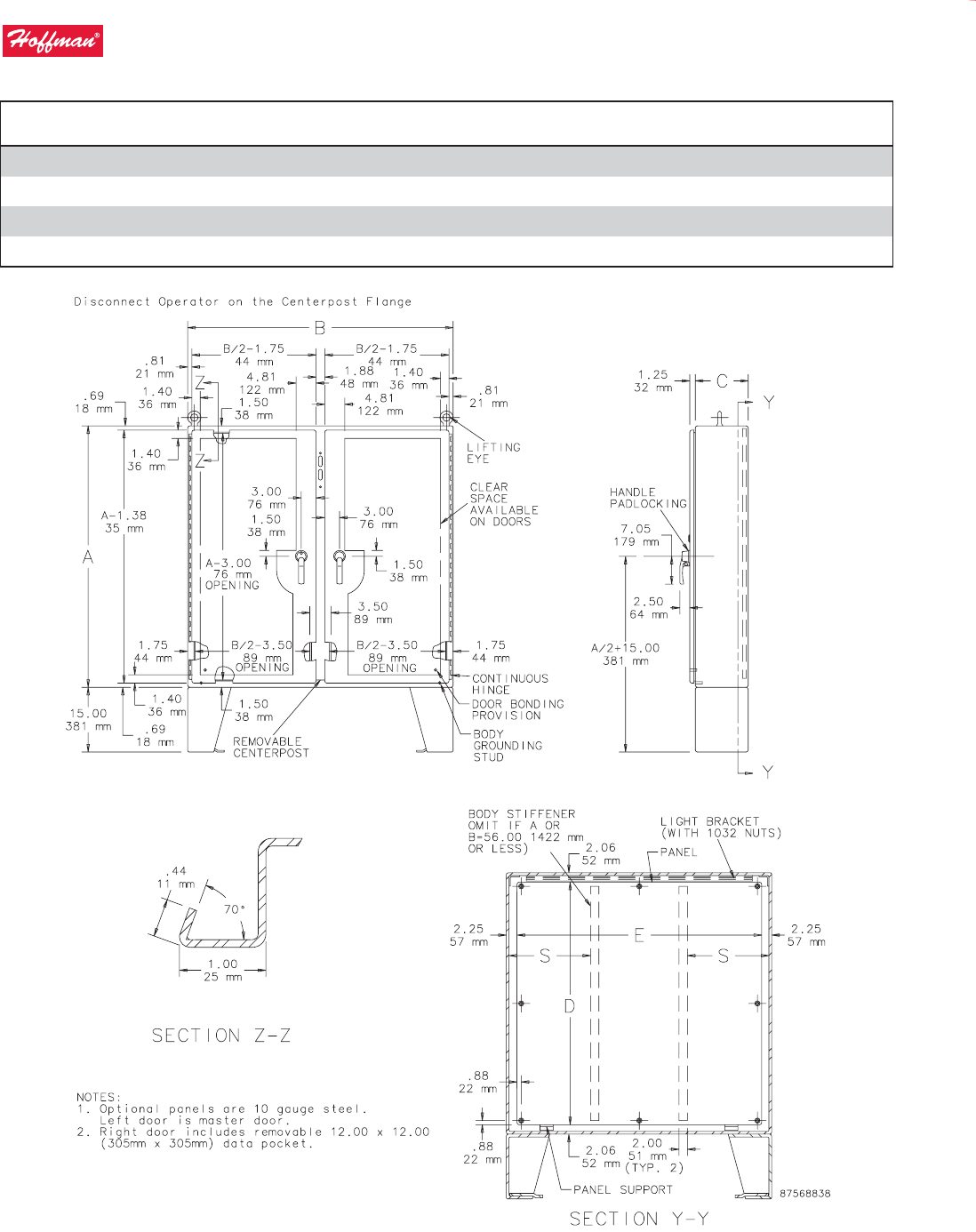
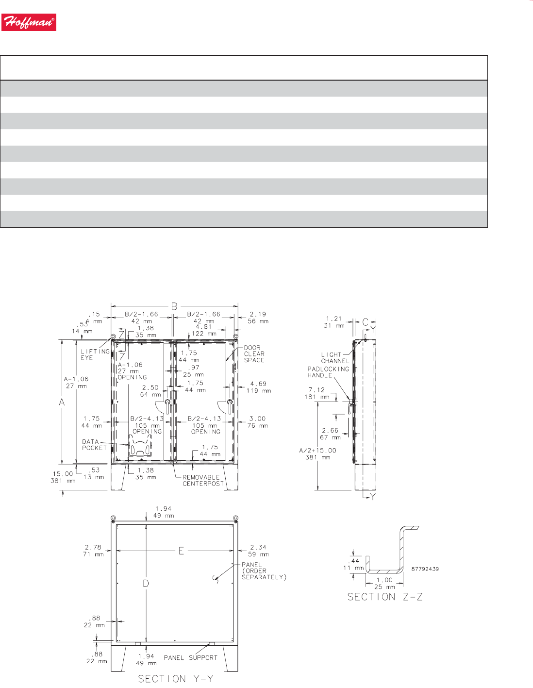
%RG\2SHQLQJ
%
PP
%
6SDFH
$
PP
'RRU
&OHDU
2SHQLQJ
$
PP
%RG\
$
'RRU&OHDU6SDFH
%
PP
PP
-
PP
PP
PP
'RRU
%RQGLQJ
3URYLVLRQ
'RRU$OLJQPHQW
'HYLFH
PP
PP
&
PP
PP
PP
PP
<
<
3DQHO
*D
ZKHQ
%
*D
ZKHQ
%
!
%RG\
*URXQGLQJ
6WXG
6HH'HWDLO
PP
*
PP
PP
+
'
(
PP
PP
PP
6(&7,21<<
2PLW
PLGGOH
VWXGLI
$
0LGGOHVWXGV
ZKHQ%!
3DQHO
2UGHU
6HSDUDWHO\
'(7$,/
127('RRUKDVSURYLVLRQIRUGDWDSRFNHW8VHODUJH
GDWDSRFNHWZKHQ$ PPRUPRUH
DQG% PPRUPRUH
PP
PP
PP
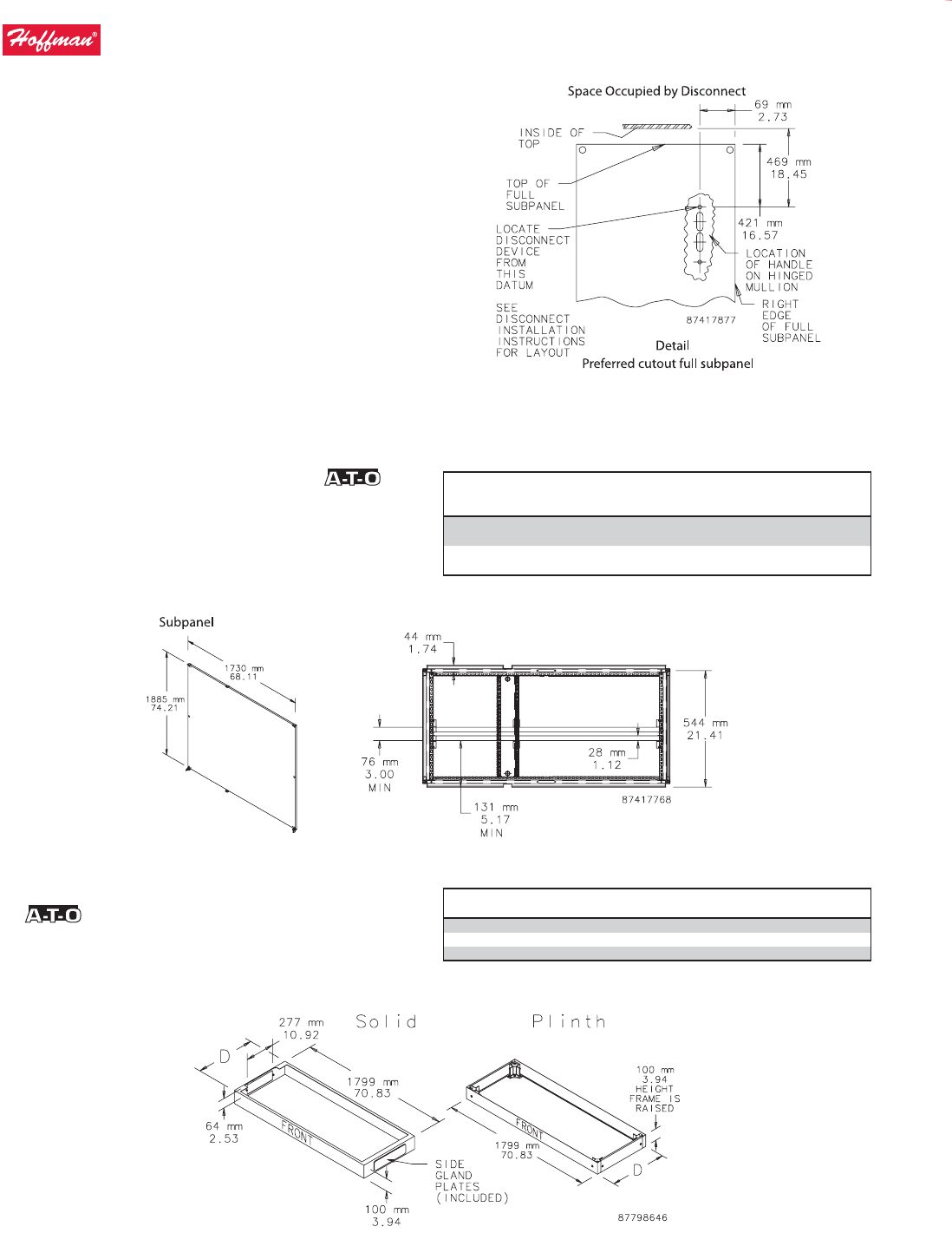
Disconnect Mounting Space
Disconnects will occupy space on panel shown by dimensions E1, F1
and G1. Wiring space W1 is available when disconnect is installed in
the enclosure.
E1 = 4.75 in. (121 mm) when C = 8.00 in. (203 mm)
E1 = 11.62 in. (294 mm) when C = 12.00 in. (305 mm)
W1 = Wiring Space.
See Technical Information for wire bend space.
Refer to NATIONAL ELECTRICAL CODE, 2005 article 430-10(b) for
wiring space required for line side conductors to be connected to
disconnect.
Verify your application to determine whether wiring space is
adequate.
Consult Space Occupied by Disconnect drawing to determine whether
the disconnect device you are using will t the enclosure size you have
selected.

324
Disconnect: Wall-Mount Preferred-Cutout Disconnect Enclosures
Type 4 and 12 Wall-Mount Disconnect Enclosures
PH (763) 422-2211 • FX (763) 422-2600 • homanonline.com
Subject to change without notice © 2011 Pentair Technical Products
Type 4 and 12 Wall-Moun t Disconne ct Enclos ures
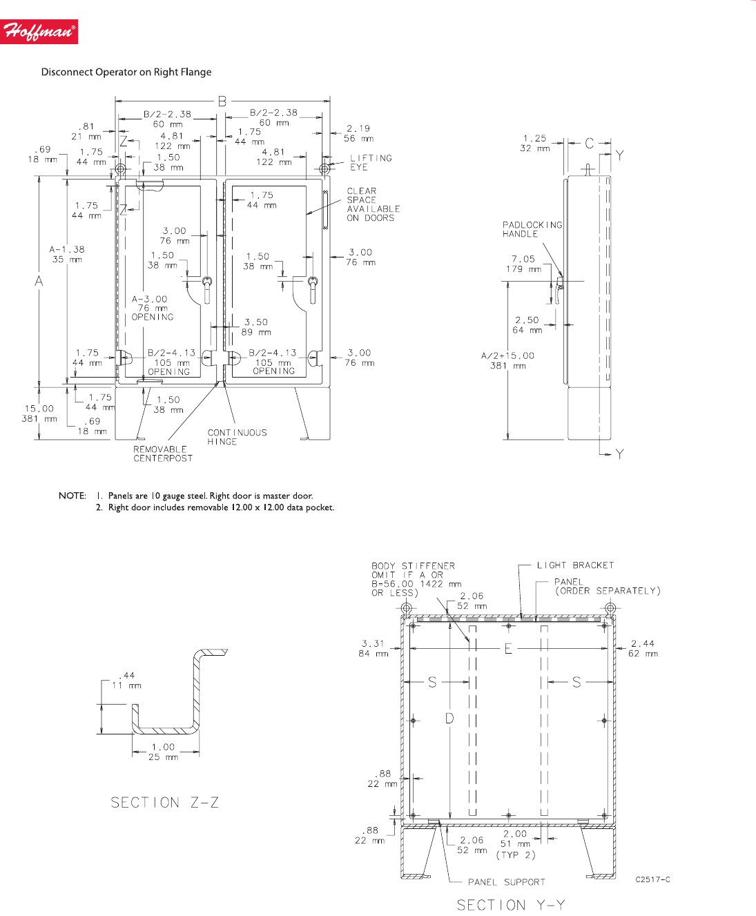
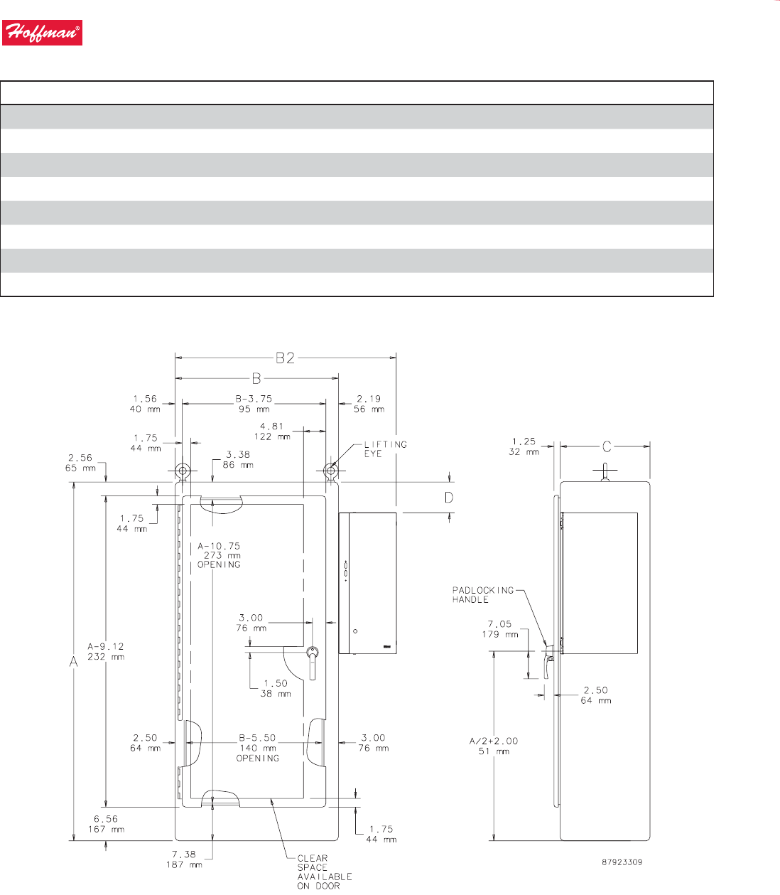
Disconnect Enclosure with Clamps, Type 4
Industry Standards
UL 508A Listed; Type 4, 12; File No. E61997
cUL Listed per CSA C22.2 No. 94; Type 4, 12; File No. E61997
NEMA/EEMAC Type 3, 4, 12, 13
CSA File No. 42186: Type 4, 12
IEC 60529, IP66
Application
For disconnect applications in which a clamp-secured door is
preferred. Clamps on three sides of the door keep liquid and
contaminants out. Preferred cutout accepts major brand disconnect
switches and circuit breakers.
Furnished with Enclosures
1. Bracket welded to door for attaching disconnect door catch
(interlock)
2. Instructions to locate and install disconnect switches, circuit
breakers and operating mechanisms
Specications
• 14 gauge steel
• Seams continuously welded and ground smooth
• External mounting brackets
• External-formed ange around all sides of enclosure opening
• Stainless steel door clamps on three sides of door
• Removable door with continuous hinge
• Data pocket is high impact thermoplastic
• Type 4 rated door gasket
• Collar studs for mounting optional panels
• Holes in body for mounting disconnect operating handle and
operating mechanism
• Bonding provision on door
• Bracket welded to door for attaching disconnect door catch
(interlock) and instructions for installing disconnects
Finish
ANSI 61 gray polyester powder coating inside and out.
Accessories
See also Accessories.
Blank Adapter Plates, Mild Steel
Industrial Corrosion Inhibitors
Electric Heater
PANELITE™ Enclosure Lights Overview
Panels for Type 3R, 4, 4X, 12 and 13 Enclosures
Modication and Customization
Homan excels at modifying and customizing products to your
specications. Contact your local Homan sales oce or distributor
for complete information.
Bulletin: A19
Standard Product
Catalog Number AxBxC in./mm Panel Conductive Panel
Panel Size
D x E
in./mm
Data Pocket Size
in./mm
Number of
Clamps
A24HS2108LP 24.00 x 21.38 x 8.00
610 x 543 x 203
A24P20 A24P20G 21.00 x 17.00
533 x 432
6.00 x 6.00
152 x 152
5
A24HS2508LP 24.00 x 25.38 x 8.00
610 x 645 x 203
A24P24 A24P24G 21.00 x 21.00
533 x 533
6.00 x 6.00
152 x 152
5
A30HS2508LP 30.00 x 25.38 x 8.00
762 x 645 x 203
A30P24 A30P24G 27.00 x 21.00
686 x 533
12.00 x 12.00
305 x 305
5
A36HS2508LP 36.00 x 25.38 x 8.00
914 x 645 x 203
A36P24 A36P24G 33.00 x 21.00
838 x 533
12.00 x 12.00
305 x 305
5
A36HS3108LP 36.00 x 31.38 x 8.00
914 x 797 x 203
A36P30 A36P30G 33.00 x 27.00
838 x 686
12.00 x 12.00
305 x 305
7
A42HS3112LP 42.00 x 31.38 x 12.00
1067 x 797 x 305
A42P30 A42P30G 39.00 x 27.00
991 x 686
6.00 x 6.00
152 x 152
10
A42HS3712LP 42.00 x 37.38 x 12.00
1067 x 949 x 305
A42P36 A42P36G 39.00 x 33.00
991 x 838
12.00 x 12.00
305 x 305
10
A48HS3712LP 48.00 x 37.38 x 12.00
1219 x 949 x 305
A48P36 A48P36G 45.00 x 33.00
1143 x 838
12.00 x 12.00
305 x 305
10
A60HS3712LP 60.00 x 37.38 x 12.00
1524 x 949 x 305
A60P36 A60P36G 57.00 x 33.00
1448 x 838
12.00 x 12.00
305 x 305
11
Purchase panels separately.

325
Disconnect: Wall-Mount Preferred-Cutout Disconnect Enclosures
Type 4 and 12 Wall-Mount Disconnect Enclosures
PH (763) 422-2211 • FX (763) 422-2600 • homanonline.com
Subject to change without notice © 2011 Pentair Technical Products

326
Disconnect: Wall-Mount Preferred-Cutout Disconnect Enclosures
Type 4 and 12 Wall-Mount Disconnect Enclosures
PH (763) 422-2211 • FX (763) 422-2600 • homanonline.com
Subject to change without notice © 2011 Pentair Technical Products
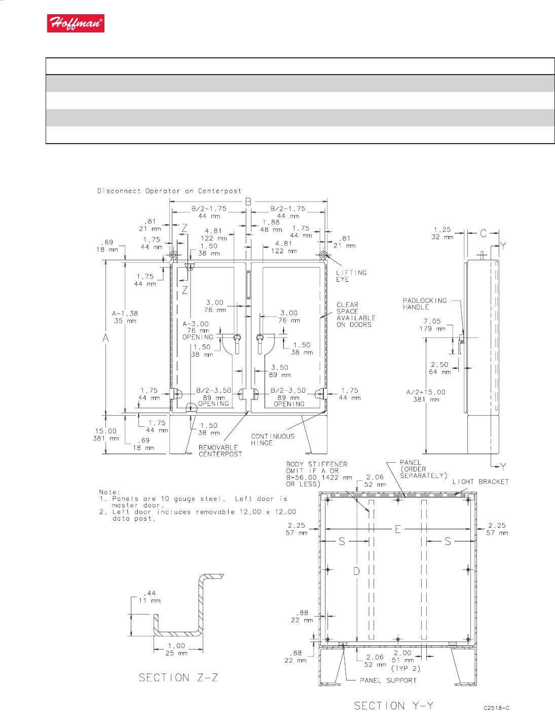
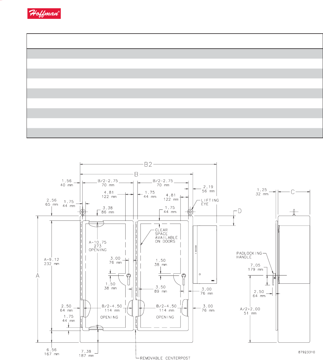
Disconnect Enclosure with Clamps, Type 4X
Industry Standards
UL 508A Listed; Type 3R, 4, 4X, 12; File No. E61997
cUL Listed per CSA C22.2 No. 94; Type 3R, 4, 4X, 12; File No.
E61997
NEMA/EEMAC Type 3, 3R, 4, 4X, 12, 13
CSA File No. 42186: Type 4, 4X, 12
IEC 60529, IP66
Meets NEMA Type 3RX requirements
Application
For disconnect applications in which a clamp-secured door is
preferred, this enclosure features clamps on three sides to keep
liquids and contaminants from entering and a preferred cutout that
accepts major brand disconnect switches and circuit breakers.
Furnished with Enclos ure
1. Bracket welded to door for attaching disconnect door catch
(interlock)
2. Instructions to locate and install disconnect switches, circuit
breakers and operating mechanisms
Specications
• 14 gauge Type 304 or Type 316L stainless steel
• Seams continuously welded and ground smooth
• External mounting brackets
• External-formed ange around all sides of enclosure opening
• Stainless steel door clamps on three sides of door
• Door removed by pulling stainless steel continuous hinge pin
• Data pocket is high-impact thermoplastic
• Seamless foam-in-place gasket
• Collar studs provided for mounting optional panels
•
Holes provided in body for mounting disconnect operating handle
and operating mechanism
• Bonding provision on door; ground stud on body
• All exterior hardware on Type 316L enclosures matches the
enclosure material
• Bracket welded to door to attach disconnect door catch (interlock)
• Includes instructions for installing disconnect switches, circuit
breakers and operating mechanisms
Finish
Sides and body have smooth #4 brushed nish.
Accessories
See also Accessories.
Blank Adapter Plates, Stainless Steel
Industrial Corrosion Inhibitors
Electric Heater
PANELITE™ Enclosure Lights Overview
Panels for Type 3R, 4, 4X, 12 and 13 Enclosures
Terminal Block Kit Assembly for Type 4, 12 and 13 Enclosures
Steel and Stainless Steel Window Kits
Modication and Customization
Homan excels at modifying and customizing products to your
specications. Contact your local Homan sales oce or distributor
for complete information.
Bulletin: A19S
Standard Product
Catalog Number AxBxC in. AxBxC mm
Stainless
Steel
Type Panel
Conductive
Panel
Panel Size
D x E (in.)
Panel Size
D x E (mm)
Data Pocket
Size (in.)
Data Pocket
Size (mm)
Number
of Clamps
A24HS2108SSLP 24.00 x 21.38 x 8.00 610 x 543 x 203 304 A24P20 A24P20G 21.00 x 17.00 533 x 432 6.00 x 6.00 152 x 152 5
A24HS2108SS6LP 24.00 x 21.38 x 8.00 610 x 543 x 203 316L A24P20 A24P20G 21.00 x 17.00 533 x 432 6.00 x 6.00 152 x 152 5
A24HS2508SSLP 24.00 x 25.38 x 8.00 610 x 645 x 203 304 A24P24 A24P24G 21.00 x 21.00 533 x 533 6.00 x 6.00 152 x 152 5
A24HS2508SS6LP 24.00 x 25.38 x 8.00 610 x 645 x 203 316L A24P24 A24P24G 21.00 x 21.00 533 x 533 6.00 x 6.00 152 x 152 5
A30HS2508SSLP 30.00 x 25.38 x 8.00 762 x 645 x 203 304 A30P24 A30P24G 27.00 x 21.00 686 x 533 12.00 x 12.00 305 x 305 5
A30HS2508SS6LP 30.00 x 25.38 x 8.00 762 x 645 x 203 316L A30P24 A30P24G 27.00 x 21.00 686 x 533 12.00 x 12.00 305 x 305 5
A36HS2508SSLP 36.00 x 25.38 x 8.00 914 x 645 x 203 304 A36P24 A36P24G 33.00 x 21.00 838 x 533 12.00 x 12.00 305 x 305 5
A36HS2508SS6LP 36.00 x 25.38 x 8.00 914 x 645 x 203 316L A36P24 A36P24G 33.00 x 21.00 838 x 533 12.00 x 12.00 305 x 305 5
A36HS3108SSLP 36.00 x 31.38 x 8.00 914 x 797 x 203 304 A36P30 A36P30G 33.00 x 27.00 838 x 686 12.00 x 12.00 305 x 305 7
A36HS3108SS6LP 36.00 x 31.38 x 8.00 914 x 797 x 203 316L A36P30 A36P30G 33.00 x 27.00 838 x 686 12.00 x 12.00 305 x 305 7
A42HS3112SSLP 42.00 x 31.38 x 12.00 1067 x 797 x 305 304 A42P30 A42P30G 39.00 x 27.00 991 x 686 12.00 x 12.00 305 x 305 10
A42HS3112SS6LP 42.00 x 31.38 x 12.00 1067 x 797 x 305 316L A42P30 A42P30G 39.00 x 27.00 991 x 686 12.00 x 12.00 305 x 305 10
A42HS3712SSLP 42.00 x 37.38 x 12.00 1067 x 949 x 305 304 A42P36 A42P36G 39.00 x 33.00 991 x 838 12.00 x 12.00 305 x 305 10
A42HS3712SS6LP 42.00 x 37.38 x 12.00 1067 x 949 x 305 316L A42P36 A42P36G 39.00 x 33.00 991 x 838 12.00 x 12.00 305 x 305 10
A48HS3712SSLP 48.00 x 37.38 x 12.00 1219 x 949 x 305 304 A48P36 A48P36G 45.00 x 33.00 1143 x 838 12.00 x 12.00 305 x 305 10
A48HS3712SS6LP 48.00 x 37.38 x 12.00 1219 x 949 x 305 316L A48P36 A48P36G 45.00 x 33.00 1143 x 838 12.00 x 12.00 305 x 305 10
A60HS3712SSLP 60.00 x 37.38 x 12.00 1524 x 949 x 305 304 A60P36 A60P36G 57.00 x 33.00 1448 x 838 12.00 x 12.00 305 x 305 11
A60HS3712SS6LP 60.00 x 37.38 x 12.00 1524 x 949 x 305 316L A60P36 A60P36G 57.00 x 33.00 1448 x 838 12.00 x 12.00 305 x 305 11
Purchase panels separately. Optional stainless steel, composite or aluminum panels are available for most sizes

327
Disconnect: Wall-Mount Preferred-Cutout Disconnect Enclosures
Type 4 and 12 Wall-Mount Disconnect Enclosures
PH (763) 422-2211 • FX (763) 422-2600 • homanonline.com
Subject to change without notice © 2011 Pentair Technical Products
Disconnect Mounting Space
Disconnects will occupy space on panel shown by dimensions E1, F1,
and G1. Wiring space W1 is available when disconnect is installed in
the enclosure.
E1 = 8.62 in. (219 mm) when C = 8.00 in. (203 mm)
E1 = 11.62 in. (294 mm) when C = 12.00 in. (305 mm)
W1 = Wiring Space
Refer to NATIONAL ELECTRICAL CODE, 2005 article 430-10(b) for
wiring space required for line side conductors to be connected to
disconnect.
Verify your application to determine whether wiring space is
adequate.
Consult Space Occupied by Disconnect drawing to determine whether
the disconnect device you are using will t the enclosure size you have
selected.

328
Disconnect: Wall-Mount Preferred-Cutout Disconnect Enclosures
Fiberglass Disconnect Enclosures
PH (763) 422-2211 • FX (763) 422-2600 • homanonline.com
Subject to change without notice © 2011 Pentair Technical Products
Fiberglass D isconnec t Enclosur es
Fiberglass Disconnect, Type 4X
Industry Standards
UL 508A Listed; Type 3, 3R, 4, 4X, 12, 13; File No. E61997
cUL Listed per CSA C22.2 No. 94; Type 3, 3R, 4, 4X, 12, 13; File
No. E61997
Enclosure ammability evaluated per UL 508A
NEMA/EEMAC Type 3, 3R, 4, 4X, 12, 13
IEC 60529, IP66
Meets NEMA Type 3RX requirements
Application
For eective and economical disconnect protection in the harshest
corrosive environments, these enclosures provide secure door
closure through the use of Type 304 stainless steel slotted quarter-
turn latches.
Specications
• Fiberglass-reinforced material has excellent temperature and
chemical resistance qualities and exhibits outstanding physical
properties
• Seams are sealed; no holes or knockouts
• Seamless foam-in-place gasket assures water-tight and dust-tight
seal
• Fiberglass material is easily drilled, led or sawed
• Hinges are berglass-reinforced polyester
• Doors are secured with Type 304 stainless steel slotted quarter-
turn latches
• Data pocket is high-impact thermoplastic
•
Copper ashed steel collar studs for mounting optional panels and
terminal block kits
•
Holes provided in body for mounting disconnect operating handle
and operating mechanism
• Internal grounding provisions for quarter-turn latches
• Includes bracket axed to door for attaching disconnect door
catch (interlock) and instructions for installing disconnects
Finish
Fiberglass material is light-gray inside and out. Optional steel panels
are painted white. Optional stainless steel, aluminum, conductive and
composite panels are unpainted.
Accessories
See also Accessories.
Frameless Window Kit
Panels for Type 3R, 4, 4X, 12 and 13 Enclosures
Steel and Stainless Steel Window Kits
Terminal Block Kit Assembly for Type 4, 12 and 13 Enclosures
Modication and Customization
Homan excels at modifying and customizing products to your
specications. Contact your local Homan sales oce or distributor
for complete information.
Bulletin: A17WD
Standard Product
Catalog Number AxBxC in./mm Panel Conductive Panel
Panel Size
in./mm
Mounting G x H
in./mm
Number of
Latches
A20HS1610GQRLP 20.19 x 16.25 x 10.00
513 x 413 x 254
A20P16 A20P16G 17.00 x 13.00
432 x 330
21.81 x 10.00
554 x 254
2
A24HS2008GQRLP 24.25 x 20.25 x 8.00
616 x 514 x 203
A24P20 A24P20G 21.00 x 17.00
533 x 432
25.86 x 14.00
657 x 356
2
A24HS2408GQRLP 24.19 x 24.19 x 8.00
614 x 614 x 203
A24P24 A24P24G 21.00 x 21.00
533 x 533
25.81 x 18.00
656 x 457
2
A24HS2412GQRLP 24.19 x 24.19 x 12.00
614 x 614 x 305
A24P24 A24P24G 21.00 x 21.00
533 x 533
25.81 x 18.00
656 x 457
2
A30HS2412GQRLP 30.25 x 24.25 x 12.00
768 x 616 x 305
A30P24 A30P24G 27.00 x 21.00
686 x 533
31.95 x 18.00
812 x 457
2
A36HS3012GQRLP 36.25 x 30.25 x 12.00
921 x 768 x 305
A36P30 A36P30G 33.00 x 27.00
838 x 686
37.58 x 24.00
955 x 610
4
A48HS3612GQRLP 48.25 x 36.25 x 12.00
1226 x 921 x 305
A48P36 A48P36G 45.00 x 33.00
1143 x 838
49.58 x 30.00
1259 x 762
5
A60HS3612GQRLP 60.25 x 36.25 x 12.00
1530 x 921 x 305
A60P36 A60P36G 57.00 x 33.00
1448 x 838
61.58 x 30.00
1564 x 762
5
Purchase panels separately. Optional stainless steel, composite and aluminum panels available for most sizes. See General Accessories.
No additional “C” dimensions available.

329
Disconnect: Wall-Mount Preferred-Cutout Disconnect Enclosures
Fiberglass Disconnect Enclosures
PH (763) 422-2211 • FX (763) 422-2600 • homanonline.com
Subject to change without notice © 2011 Pentair Technical Products

330
Disconnect: Wall-Mount Preferred-Cutout Disconnect Enclosures
Fiberglass Disconnect Enclosures
PH (763) 422-2211 • FX (763) 422-2600 • homanonline.com
Subject to change without notice © 2011 Pentair Technical Products

331
Disconnect: Wall-Mount Preferred-Cutout Disconnect Enclosures
Fiberglass Disconnect Enclosures
PH (763) 422-2211 • FX (763) 422-2600 • homanonline.com
Subject to change without notice © 2011 Pentair Technical Products
Disconnect Mounting Space
Disconnects will occupy space on panel shown in Disconnect
Mounting Space Diagram. Wiring space W1 is available when
disconnect is installed in the enclosure.
E1 = 8.62 in. (219 mm) when A < 30.00 in. (768 mm) and C = 8.00 in.
(203 mm), 10.00 in. (254 mm) or 12.00 in. (305 mm)
E1 = 11.62 in. (295 mm) when A > 30.00 in. (768 mm) and C = 12.00 in.
(305 mm)
W1 = Wiring Space.
See Technical Information for wire bend space.
Refer to National Electrical Code® 2005 article 430-10(b) for wiring
space required for line side conductors to be connected to
disconnect.
Verify your application to determine whether wiring space is
adequate.

332
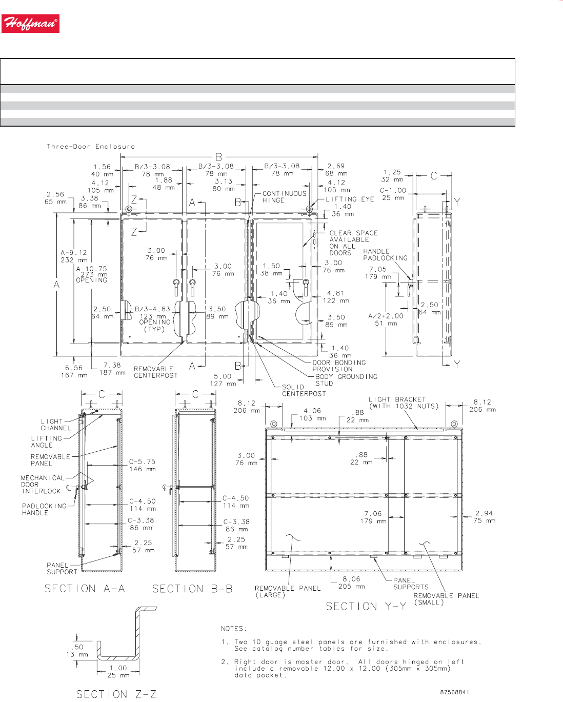
Disconnect: Wall-Mount Preferred-Cutout Disconnect Enclosures
Low-Prole Type 12 Disconnect Enclosures and Accessories
PH (763) 422-2211 • FX (763) 422-2600 • homanonline.com
Subject to change without notice © 2011 Pentair Technical Products
Low-Prole Type 12 Dis connect E nclosure s and Access ories
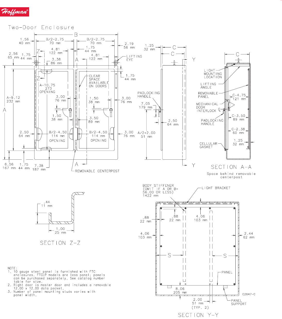
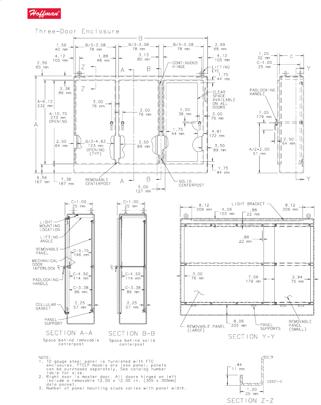
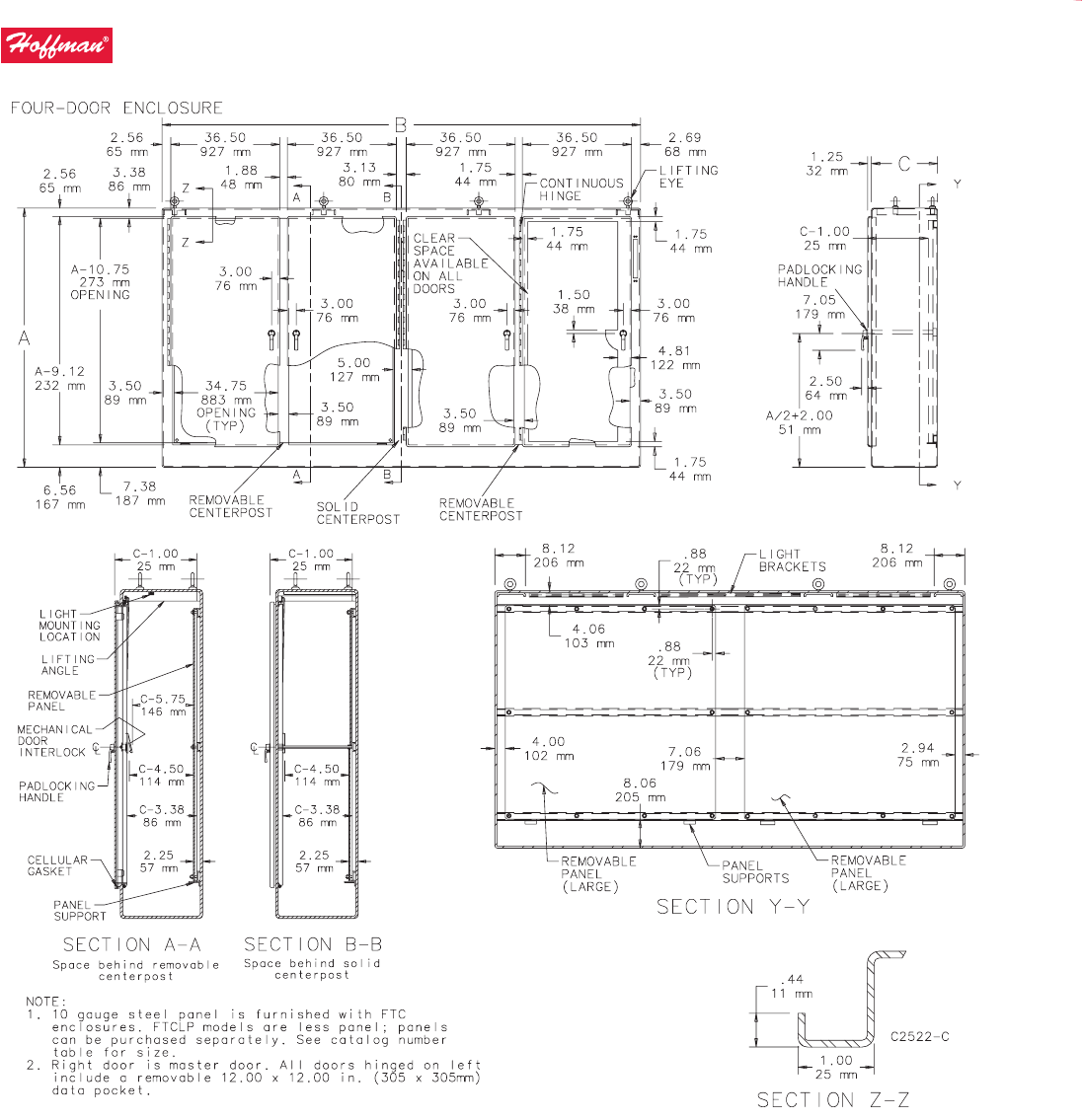
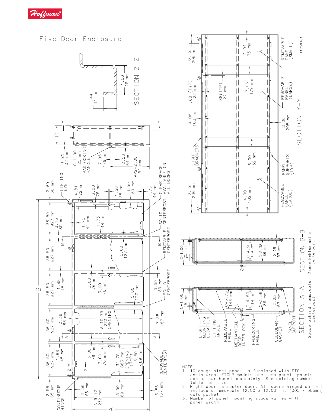
Low-Prole, One- to Five-Door Disconnect Enclosure, Type 12
Industry Standards
UL 508A Listed; Type 12; File No. E61997
cUL Listed per CSA C22.2 No. 94; Type 12; File No. E61997
NEMA/EEMAC Type 12
IEC 60529, IP55
Application
Available in one- to four-door wall-mount and one- to ve-door
free-stand models, the larger wall-mount sizes accommodate more
components and are ideal for applications with limited oor space.
Free-stand enclosures are 48- and 60-in. high to provide a clear line
of site above the enclosure.
Specications
• 14, 12 or 10 gauge steel
• Seams continuously welded and ground smooth
• Body stieners in larger enclosures for extra rigidity
• Body ange trough excludes liquids and contaminants
• Heavy duty lifting eyes anchor into reinforced top on larger models
• Removable centerposts for easy panel installation
• Heavy gauge continuous hinges
• Heavy duty latch mechanism operated by zinc die-cast padlocking
defeater handle on all doors. 2-point latch on enclosures up to
36 in. (914 mm); 3-point latch on enclosures 42 in. (1067 mm) and
above.
• Oil-resistant gasket
• Removable 10 gauge steel panels mount on collar studs. Purchase
panels separately.
• Master door is far right-hand door on all enclosures
• Defeater on master door requires a screwdriver to open
• Mechanical interlock activated by master door prevents slave
doors from being opened rst. Doors can be closed in any order.
• Preferred cutout on right ange provides mounting for most
disconnect switches and circuit breakers
• Enclosures with three to ve doors have three stieners on rear of
body
Finish
ANSI 61 gray inside and outside over pretreated surfaces. Optional
panels have white or conductive nish.
Accessories
See also Accessories.
Electric Heater
INTERSAFE® Data Interface Ports, Type 4/4X/12
PANELITE™ Enclosure Lights Overview
Panels for A26 Low-Prole Type 12 Disconnect Enclosures
Steel and Stainless Steel Window Kits
Modication and Customization
Homan excels at modifying and customizing products to your
specications. Contact your local Homan sales oce or distributor
for complete information.
Bulletin: A26M1, A26M2, A26MM
Standard Product Low Prole Type 12 One-Door Disconnect Enclosures
Catalog Number AxBxC in. AxBxC mm Description
Body
Gauge Panel Conductive Panel
Panel
Qty.
Lifting
Eyes
A30X1E2808 30.00 x 28.25 x 8.00 762 x 718 x 203 Wall-Mount 14 A25P21 A25P21G 1 0
A30X1E2810 30.00 x 28.25 x 10.00 762 x 718 x 254 Wall-Mount 14 A25P21 A25P21G 1 0
A36X1E2808 36.00 x 28.25 x 8.00 914 x 718 x 203 Wall-Mount 14 A31P21 A31P21G 1 0
A36X1E2810 36.00 x 28.25 x 10.00 914 x 718 x 254 Wall-Mount 14 A31P21 A31P21G 1 0
A42X1E2808 42.00 x 28.25 x 8.00 1067 x 718 x 203 Wall-Mount 14 A37P21 A37P21G 1 0
A42X1E2810 42.00 x 28.25 x 10.00 1067 x 718 x 254 Wall-Mount 14 A37P21 A37P21G 1 0
A48X1E4010 48.00 x 40.25 x 10.00 1219 x 1022 x 254 Free-Stand 12 A42P33 A42P33G 1 2
A48X1E4024 48.00 x 40.25 x 24.00 1219 x 1022 x 610 Free-Stand 12 A42P33 A42P33G 1 2
A48X1E4018 48.00 x 40.25 x 18.00 1220 x 1023 x 457 Free-Stand 12 A42P33 A42P33G 1 2
A60X1E4008 60.00 x 40.25 x 8.00 1524 x 1022 x 203 Free-Stand 12 A54P33 A54P33G 1 2
A60X1E4010 60.00 x 40.25 x 10.00 1524 x 1022 x 254 Free-Stand 12 A54P33 A54P33G 1 2
A60X1E4018 60.00 x 40.25 x 18.00 1525 x 1023 x 457 Free-Stand 12 A54P33 A54P33G 1 2
A60X1E4024 60.00 x 40.25 x 24.00 1525 x 1023 x 610 Free-Stand 12 A54P33 A54P33G 1 2
Purchase panels separately.

333
Disconnect: Wall-Mount Preferred-Cutout Disconnect Enclosures
Low-Prole Type 12 Disconnect Enclosures and Accessories
PH (763) 422-2211 • FX (763) 422-2600 • homanonline.com
Subject to change without notice © 2011 Pentair Technical Products
Standard Product Low Prole Type 12 Two-Door Disconnect Enclosures
Catalog Number AxBxC in. AxBxC mm Description
Body
Gauge Panel Conductive Panel
Panel
Qty.
Body
Stiener
Lifting
Eyes
A30X2E5408 30.00 x 54.50 x 8.00 762 x 1384 x 203 Wall-Mount 12 A25P48 A25P48G 1 0 0
A30X2E5410 30.00 x 54.50 x 10.00 762 x 1384 x 254 Wall-Mount 12 A25P48 A25P48G 1 0 0
A36X2E5408 36.00 x 54.50 x 8.00 914 x 1384 x 203 Wall-Mount 12 A31P48 A31P48G 1 0 0
A36X2E5410 36.00 x 54.50 x 10.00 914 x 1384 x 254 Wall-Mount 12 A31P48 A31P48G 1 0 0
A42X2E5408 42.00 x 54.50 x 8.00 1067 x 1384 x 203 Wall-Mount 12 A37P48 A37P48G 1 0 0
A42X2E5410 42.00 x 54.50 x 10.00 1067 x 1384 x 254 Wall-Mount 12 A37P48 A37P48G 1 0 0
A48X2E7808 48.00 x 78.50 x 8.00 1219 x 1994 x 203 Free-Stand 12 A42P72 A42P72G 1 0 2
A48X2E7810 48.00 x 78.50 x 10.00 1219 x 1994 x 254 Free-Stand 12 A42P72 A42P72G 1 0 2
A48X2E7812 48.00 x 78.50 x 12.00 1219 x 1994 x 305 Free-Stand 12 A42P72 A42P72G 1 0 2
A48X2E7818 48.00 x 78.50 x 18.00 1219 x 1994 x 457 Free-Stand 12 A42P72 A42P72G 1 0 2
A48X2E7824 48.00 x 78.50 x 24.00 1219 x 1994 x 610 Free-Stand 12 A42P72 A42P72G 1 0 2
A60X2E7808 60.00 x 78.50 x 8.00 1524 x 1994 x 203 Free-Stand 12 A54P72 A54P72G 1 0 2
A60X2E7810 60.00 x 78.50 x 10.00 1524 x 1994 x 254 Free-Stand 12 A54P72 A54P72G 1 0 2
A60X2E7818 60.00 x 78.50 x 18.00 1524 x 1995 x 457 Free-Stand 12 A54P72 A54P72G 1 0 2
A60X2E7824 60.00 x 78.50 x 24.00 1524 x 1994 x 610 Free-Stand 12 A54P72 A54P72G 1 0 2
Purchase panels separately.
Standard Product Low Prole Type 12 Three-Door Disconnect Enclosures
Catalog Number AxBxC in. AxBxC mm Description
Body
Gauge Panel Conductive Panel
Panel
Qty.
Body
Stiener
Lifting
Eyes
A30X3E8310 30.00 x 82.25 x 10.00 762 x 2089 x 254 Wall-Mount 12 A25P21, A25P48 A25P21G, A25P48G 1, 1 0 2
A36X3E8310 36.00 x 82.25 x 10.00 914 x 2089 x 254 Wall-Mount 12 A31P21, A31P48 A31P21G, A31P48G 1, 1 0 2
A42X3E8310 42.00 x 82.25 x 10.00 1067 x 2089 x 254 Wall-Mount 12 A37P21, A37P48 A37P21G, A37P48G 1, 1 0 2
A48X3E11910 48.00 x 118.25 x 10.00 1219 x 3004 x 254 Free-Stand 12 A42P33, A42P72 A42P33G, A42P72G 1, 1 3 2
A48X3E11912 48.00 x 118.25 x 12.00 1219 x 3004 x 305 Free-Stand 12 A42P33, A42P72 A42P33G, A42P72G 1, 1 3 2
A48X3E11918 48.00 x 118.25 x 18.00 1219 x 3004 x 457 Free-Stand 12 A42P33, A42P72 A42P33G, A42P72G 1, 1 3 2
A60X3E11910 60.00 x 118.25 x 10.00 1524 x 3004 x 254 Free-Stand 12 A54P33, A54P72 A54P33G, A54P72G 1, 1 3 2
A60X3E11912 60.00 x 118.25 x 12.00 1524 x 3004 x 305 Free-Stand 12 A54P33, A54P72 A54P33G, A54P72G 1, 1 3 2
A60X3E11918 60.00 x 118.25 x 18.00 1524 x 3004 x 457 Free-Stand 12 A54P33, A54P72 A54P33G, A54P72G 1, 1 3 2
A60X3E11924 60.00 x 118.25 x 24.00 1524 x 3004 x 610 Free-Stand 12 A54P33, A54P72 A54P33G, A54P72G 1, 1 3 2
Purchase panels separately.
Standard Product Low Prole Type 12 Four-Door Disconnect Enclosures
Catalog Number AxBxC in. AxBxC mm Description
Body
Gauge Panel Conductive Panel
Panel
Qty.
Body
Stiener
Lifting
Eyes
A42X4E10810 42.00 x 108.50 x 10.00 1067 x 2756 x 254 Wall-Mount 10 A37P48 A37P48G 2 0 4
A48X4E15710 48.00 x 156.50 x 10.00 1219 x 3975 x 254 Free-Stand 10 A42P72 A42P72G 2 3 4
A48X4E15712 48.00 x 156.50 x 12.00 1219 x 3975 x 305 Free-Stand 10 A42P72 A42P72G 2 3 4
A48X4E15718 48.00 x 156.50 x 18.00 1219 x 3977 x 457 Free-Stand 10 A42P72 A42P72G 2 3 4
A60X4E15710 60.00 x 156.50 x 10.00 1524 x 3975 x 254 Free-Stand 10 A54P72 A54P72G 2 3 4
A60X4E15712 60.00 x 156.50 x 12.00 1524 x 3975 x 305 Free-Stand 10 A54P72 A54P72G 2 3 4
A60X4E15716 60.00 x 156.50 x 16.00 1524 x 3975 x 406 Free-Stand 10 A54P72 A54P72G 2 3 4
A60X4E15718 60.00 x 156.50 x 18.00 1524 x 3975 x 457 Free-Stand 10 A54P72 A54P72G 2 3 4
Purchase panels separately.
Standard Product Low Prole Type 12 Five-Door Disconnect Enclosures
Catalog Number AxBxC in. AxBxC mm Description
Body
Gauge Panel Conductive Panel
Panel
Qty.
Body
Stiener
Lifting
Eyes
A48X5E19612 48.00 x 196.25 x 12.00 1219 x 4987 x 305 Free-Stand 10 A42P33, A42P72 A42P33G, A42P72G 1, 2 3 4
A48X5E19618 48.00 x 196.25 x 18.00 1219 x 4987 x 457 Free-Stand 10 A42P33, A42P72 A42P33G, A42P72G 1, 2 3 4
A60X5E19610 60.00 x 196.25 x 10.00 1524 x 4987 x 254 Free-Stand 10 A54P33, A54P72 A54P33G, A54P72G 1, 2 3 4
A60X5E19612 60.00 x 196.25 x 12.00 1524 x 4987 x 305 Free-Stand 10 A54P33, A54P72 A54P33G, A54P72G 1, 2 3 4
A60X5E19616 60.00 x 196.25 x 16.00 1524 x 4987 x 406 Free-Stand 10 A54P33, A54P72 A54P33G, A54P72G 1, 2 3 8
A60X5E19618 60.00 x 196.25 x 18.00 1524 x 4987 x 457 Free-Stand 10 A54P33, A54P72 A54P33G, A54P72G 1, 2 3 8
Purchase panels separately.

334
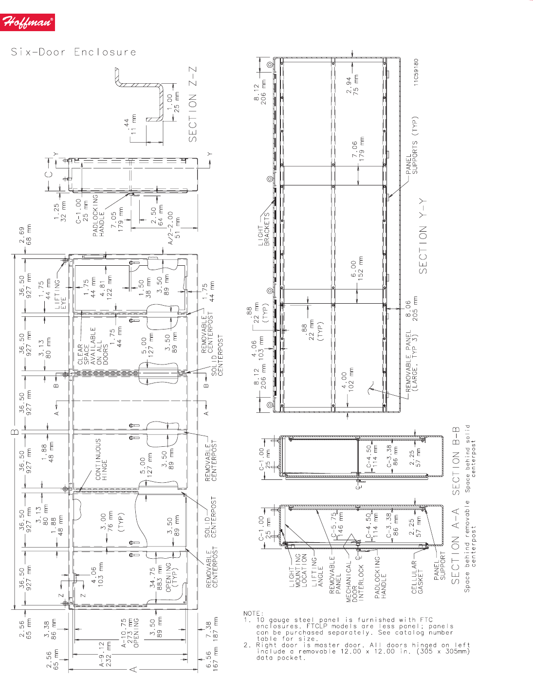
Disconnect: Wall-Mount Preferred-Cutout Disconnect Enclosures
Low-Prole Type 12 Disconnect Enclosures and Accessories
PH (763) 422-2211 • FX (763) 422-2600 • homanonline.com
Subject to change without notice © 2011 Pentair Technical Products
23(1,1*
%
>@
>@
%
%
7
8
$
=
=
%21',1*3529,6,21
%2'<*5281',1*678'
&
>@
<
<
02817,1*
%5$&.(76
21/<21
:$//02817
(1&/2685(6
3$'/2&.,1*
+$1'/(
6(&7,21<<
3$1(/
/,*+7&+$11(/
3$1(/68332576
6(&7,21==
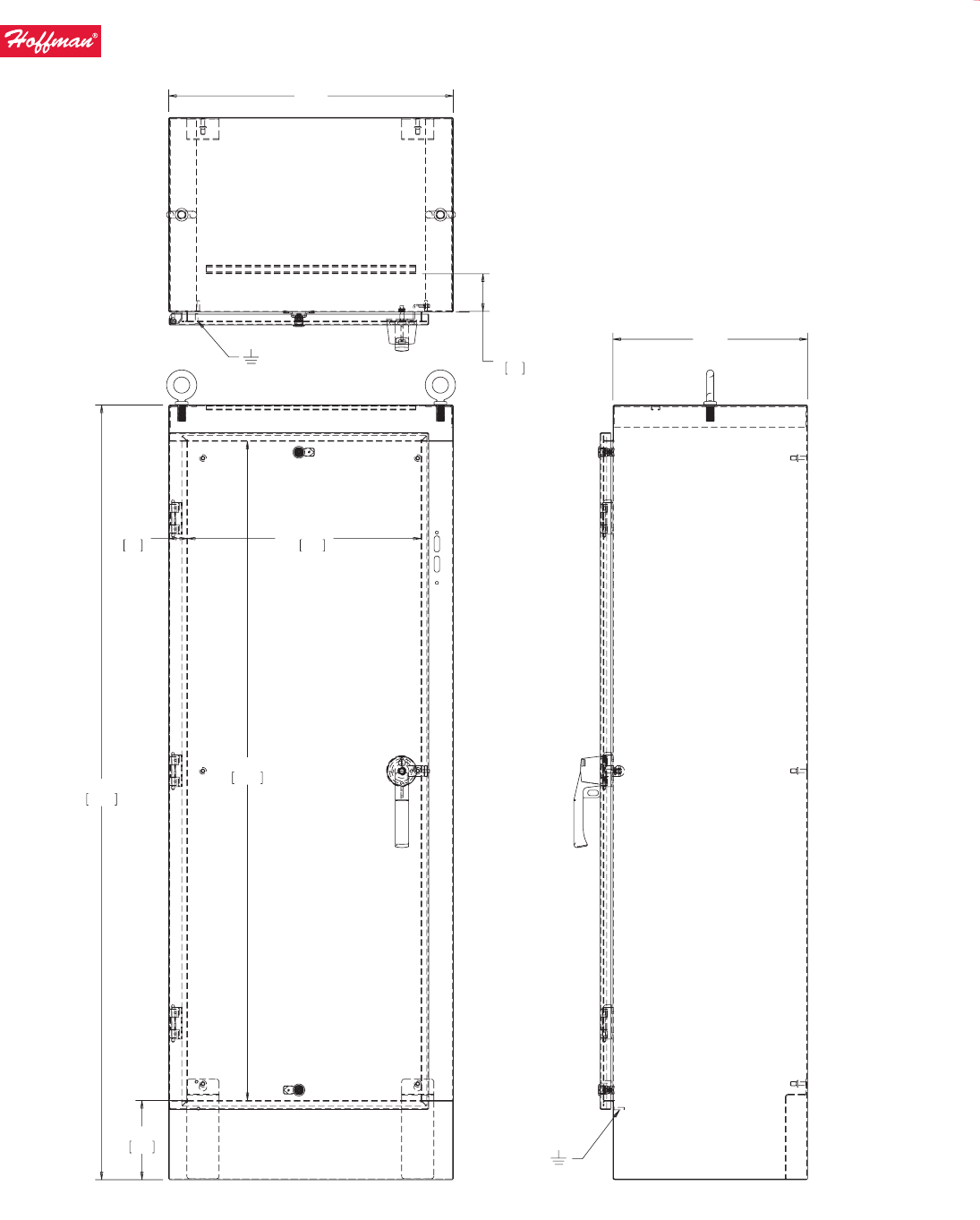
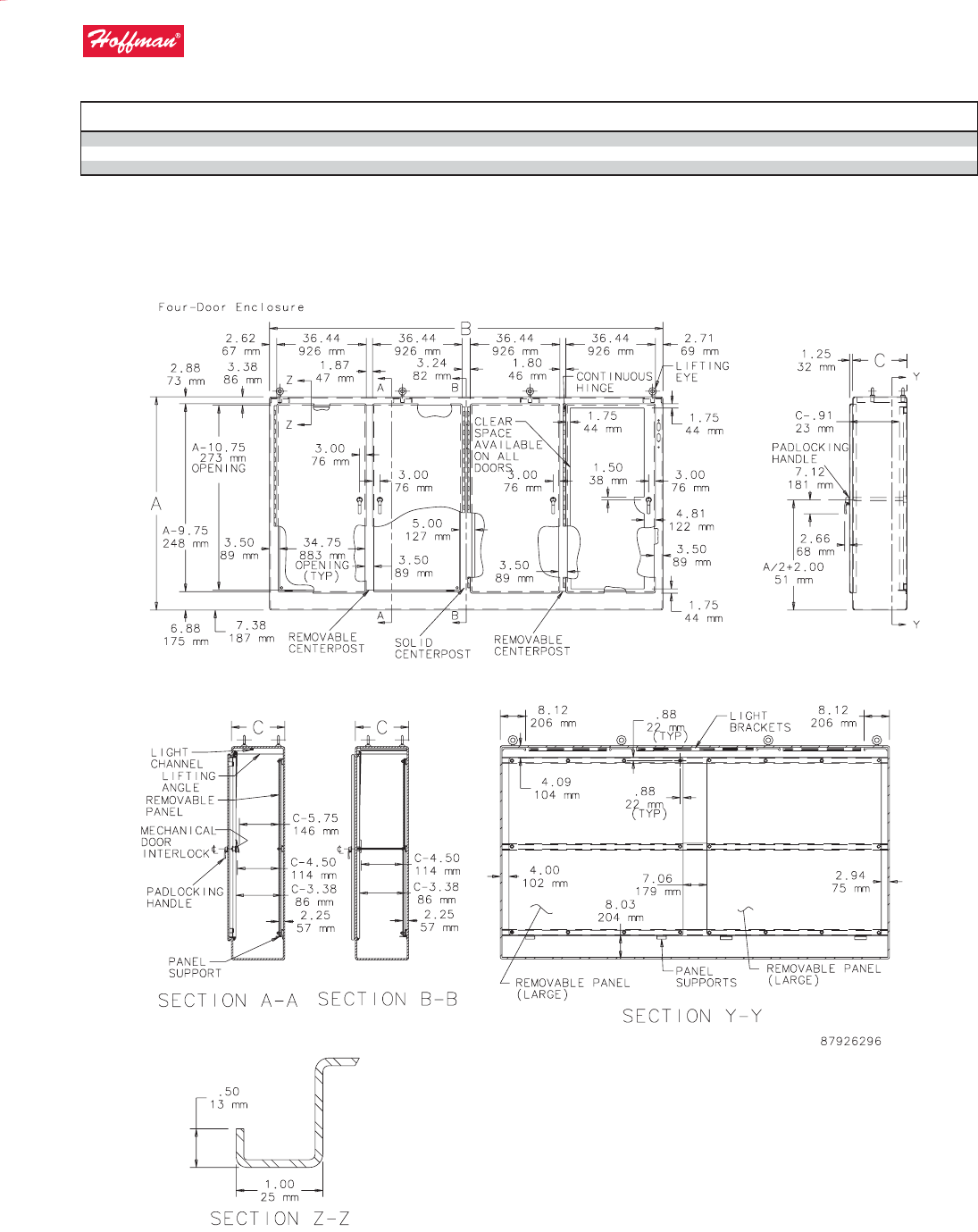
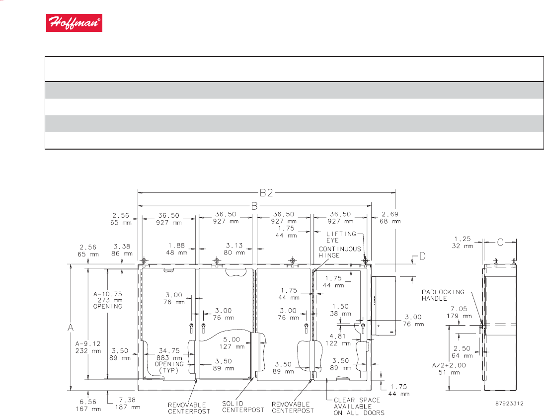
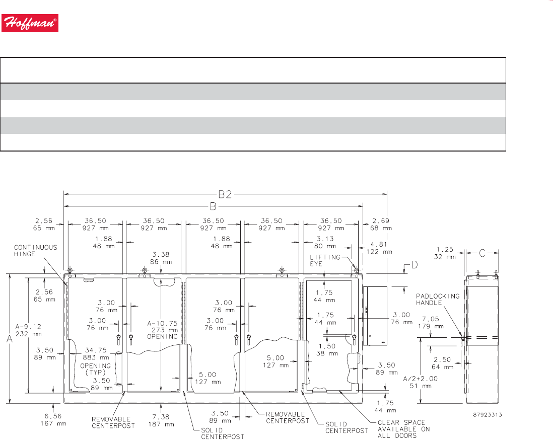
6LQJOH'RRU(QFORVXUH

335
Disconnect: Wall-Mount Preferred-Cutout Disconnect Enclosures
Low-Prole Type 12 Disconnect Enclosures and Accessories
PH (763) 422-2211 • FX (763) 422-2600 • homanonline.com
Subject to change without notice © 2011 Pentair Technical Products
>@
%7<3
%
23(1,1*
%
>@
7
8
$
=
=
%21',1*3529,6,21
%2'<*5281',1*678'
5(029$%/(
&(17(53267
&
<
<
/,)7,1*(<(
3$'/2&.,1*
+$1'/(
PP
6(&7,21<<
3$1(/
/,*+7&+$11(/
3$1(/68332576
6(&7,21==
7ZR'RRU(QFORVXUH

336
Disconnect: Wall-Mount Preferred-Cutout Disconnect Enclosures
Low-Prole Type 12 Disconnect Enclosures and Accessories
PH (763) 422-2211 • FX (763) 422-2600 • homanonline.com
Subject to change without notice © 2011 Pentair Technical Products
8
$
7<3
%
>@
23(1,1*
7
7<3
%
>@
%
=
=
/,)7,1*(<(
&/($563$&(
62/,'
&(17(53267
5(029$%/(
&(17(53267
'225%21',1*
3529,6,21
%2'<*5281',1*678'
7KUHH'RRU(QFORVXUH
>@
&
&
<
<
3$'/2&.,1*
+$1'/(
6(&7,21<<
/,*+7&+$11(/
67,))(1(5621
)5((67$1'21/<
5(029$%/(3$1(//$5*(
5(029$%/(3$1(/60$//
3$1(/
68332576
6(&7,21==

337
Disconnect: Wall-Mount Preferred-Cutout Disconnect Enclosures
Low-Prole Type 12 Disconnect Enclosures and Accessories
PH (763) 422-2211 • FX (763) 422-2600 • homanonline.com
Subject to change without notice © 2011 Pentair Technical Products
7
23(1,1*
%
>@
>@
%7<3
%
8
$
7<3
=
=
)RXU'RRU(QFORVXUH
/,)7,1*(<(
'225
%21',1*
3529,6,21
%2'<
*5281',1*
678'
5(029$%/(
&(17(53267
5(029$%/(
&(17(53267
62/,'
&(17(53267
&/($5
63$&(
>@
&
&
<
<
3$'/2&.,1*
+$1'/(
6(&7,21<<
3$1(/
67,))(1(5621
)5((67$1'21/<
5(029$%/(3$1(/
/$5*(
3$1(/68332576
5(029$%/(3$1(/
/$5*(
6(&7,21==

338
Disconnect: Wall-Mount Preferred-Cutout Disconnect Enclosures
Low-Prole Type 12 Disconnect Enclosures and Accessories
PH (763) 422-2211 • FX (763) 422-2600 • homanonline.com
Subject to change without notice © 2011 Pentair Technical Products
7<3
%
>@
23(1,1*
>@
%
7<3
%
7<3
7<3
PP
7
$
8
=
=
)LYH'RRU(QFORVXUH
'225%21',1*
3529,6,21
%2'<*5281',1*
678'
5(029$%/(
&(17(53267
62/,'
&(17(53267
5(029$%/(
&(17(53267
62/,'
&(17(53267
&/($5
63$&(
/,)7,1*(<(
&
&
>@
<
<
3$'/2&.,1*
+$1'/(
6(&7,21<<
67,))(1(56
5(029$%/(
3$1(//$5*(
5(029$%/(
3$1(//$5*(
5(029$%/(
3$1(/60$//
3$1(/
68332576
/,*+7
%5$&.(76
6(&7,21==

339
Disconnect: Wall-Mount Preferred-Cutout Disconnect Enclosures
Low-Prole Type 12 Disconnect Enclosures and Accessories
PH (763) 422-2211 • FX (763) 422-2600 • homanonline.com
Subject to change without notice © 2011 Pentair Technical Products
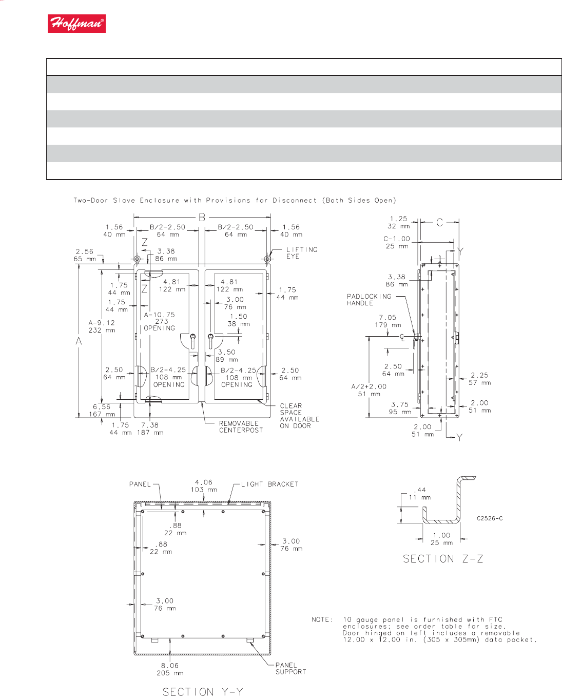
Disconnect Mounting Space
Disconnects will occupy space on panel shown by dimensions E1, F1
and G1 in Disconnect Mounting Space diagram. Wiring space W1 is
available when disconnect is installed in the enclosure.
E1 = 4.75 in. (121 mm) when C = 8.00 in. (203 mm)
E1 = 7.09 in. (180 mm) when C =10.00 in. (254 mm)
E1 = 11.62 in. (294 mm) when C = 12.00 in. (305 mm)
E1 = 11.62 in. (294 mm) when C = 16.00 in. (406 mm)
E1 = 18.38 in. (467 mm) for A60SA3812A24LP
W1 = Wiring Space.
See Technical Information for wire bend space.
Refer to NATIONAL ELECTRICAL CODE 2005 article 430.10(B) for
wiring space required for line side conductors to be connected to
disconnect.
Verify your application to determine if wiring space is adequate.
Panels for A26 Low-Prole Type 12 Disconnect
Enclosures
Optional panels for low-prole Type 12 enclosures (Bulletin A26)
are 10 gauge steel. Finish is white polyester powder paint or a
conductive, corrosion-resistant coating. Mounting hardware included
with enclosure.
Bulletin: A26P
Catalog Number Finish
Panel Size
D x E (in.)
Panel Size
D x E (mm) Fits Bay
A25P21 Painted steel 25.88 x 21.75 657 x 552 1
A31P21 Painted steel 31.88 x 21.75 810 x 552 1
A31P21G Conductive 31.88 x 21.75 810 x 552 1
A37P21 Painted steel 37.88 x 21.75 962 x 552 1
A37P21G Conductive 37.88 x 21.75 962 x 552 1
A42P33 Painted steel 42.88 x 33.75 1089 x 857 1
A42P33G Conductive 42.88 x 33.75 1089 x 857 1
A54P33 Painted steel 54.88 x 33.75 1394 x 857 1
A54P33G Conductive 54.88 x 33.75 1394 x 857 1
A25P48 Painted steel 25.88 x 48.00 657 x 1219 2
A25P48G Conductive 25.88 x 48.00 657 x 1219 2
A31P48 Painted steel 31.88 x 48.00 810 x 1219 2
A31P48G Conductive 31.88 x 48.00 810 x 1219 2
A37P48 Painted steel 37.88 x 48.00 962 x 1219 2
A37P48G Conductive 37.88 x 48.00 962 x 1219 2
A42P72 Painted steel 42.88 x 72.00 1089 x 1829 2
A42P72G Conductive 42.88 x 72.00 1089 x 1829 2
A54P72 Painted steel 54.88 x 72.00 1394 x 1829 2
A54P72G Conductive 54.88 x 72.00 1394 x 1829 2

340
Disconnect: Wall-Mount Preferred-Cutout Disconnect Enclosures
Homan WATERSHED® Wall-Mount Disconnect Enclosures
PH (763) 422-2211 • FX (763) 422-2600 • homanonline.com
Subject to change without notice © 2011 Pentair Technical Products
Homan WATERSHE D® Wall-Mo unt Discon nect Encl osures
WATERSHED® Disconnect Enclosure, Type 4X
Industry Standards
Mounting brackets required to meet UL/cUL external mounting
requirement.
UL 508A Listed; Type 4, 4X, 12; File Number E61997
cUL Listed per CSA C22.2 No. 94; Type 4, 4X, 12; File No. E61997
NSF 169
NEMA/EEMAC Type 4, 4X, 12
IEC 60529, IP66
Meets NEMA Type 3RX requirements
Application
Specically designed for disconnect applications in sanitary
washdown production environments, such as food and beverage
manufacturing. Homan WATERSHED® Disconnect Enclosures feature
a sloped top, sloped door edges, bullet-style hinges and additional
unique features that facilitate washdown runo.
Specications
• 14 gauge Type 304 stainless steel
• Seams continuously welded and ground smooth
• Smooth Type 304 stainless steel lift-o bullet-style hinges
• Hinges are shielded by door edges
•
Hinged side of door has provisions to allow direct ushing of hinge
area
• 20-degree sloped top
• 170-degree door opening
• Door edges are sloped 20 degrees at top and bottom
• Slanted ange trough collar along the top edge of the enclosure
opening
• Stainless steel quarter-turn latches with ush slotted insert
• Seamless foam-in-place gasket
• Self-grounding latch system
• Bonding provision on door; grounding stud on body
• Panel studs t optional NEMA size panels
• Preferred cutout on right ange provides mounting for most
disconnect operators
•
Mounting holes in back of body for direct mounting or for optional
stand-o kit or external mounting brackets
• Furnished hardware kit consists of panel mounting nuts,
grounding hardware and sealing washers for wall-mounting holes
Finish
Sides, top, bottom and door have a #4 brushed nish.
Accessories
See also Accessories.
Mounting Bracket Kit
Panels for Type 3R, 4, 4X, 12 and 13 Enclosures
Stand-O Kit
Padlocking Handle Kit
Padlocking Latch Kit
Modication and Customization
Homan excels at modifying and customizing products to your
specications. Contact your local Homan sales oce or distributor
for complete information.
Bulletin: WS1D

341
Disconnect: Wall-Mount Preferred-Cutout Disconnect Enclosures
Homan WATERSHED® Wall-Mount Disconnect Enclosures
PH (763) 422-2211 • FX (763) 422-2600 • homanonline.com
Subject to change without notice © 2011 Pentair Technical Products
Standard Product
Catalog Number AxBxC in./mm
A1
in./mm
A2
in./mm
B
in./mm
C
in./mm
G
in./mm
H
in./mm
Latch
Qty. Panel Conductive Panel
WS24HS2508SS 24.00 x 25.00 x 8.00
610 x 635 x 203
24.53
623
27.44
697
25.89
658
8.00
203
22.50
572
24.39
620
4 A24P24 A24P24G
WS30HS2508SS 30.00 x 25.00 x 8.00
762 x 635 x 203
30.53
775
33.44
849
25.89
658
8.00
203
28.50
724
24.39
610
4 A30P24 A30P24G
WS36HS3108SS 36.00 x 31.00 x 8.00
914 x 787 x 203
36.70
932
39.58
1005
31.89
810
8.00
203
34.50
876
30.39
772
5 A36P30 A36P30G
WS48HS3716SS 48.00 x 37.00 x 16.00
1219 x 940 x 406
48.86
1241
54.66
1388
37.89
962
16.00
406
46.50
1181
36.39
924
5 A48P36 A48P36G
WS60HS3716SS 60.00 x 37.00 x 16.00
1524 x 940 x 406
60.87
1546
66.66
1693
37.89
962
16.00
406
58.50
1486
36.39
924
5 A60P36 A60P36G
Purchase panels separately. Optional Stainless steel, composite and aluminum panels available for most sizes.
Disconnect Mounting Space
Disconnects will occupy space on panel shown by dimensions E1, F1
and G1 in diagram. Wiring space W1 is available when disconnect is
installed in the enclosure.
E1 = 4.75 in. (121 mm) when C = 8.00 in. (203 mm)
E1 = 11.62 in. (294 mm) when C = 16.00 in. (406 mm)
W1 = Wiring space.
See Technical Information for wire bend space.
Refer to National Electrical Code®, 2005 article 430-10(B) for wiring
space required for line side conductors to be connected to
disconnect.
Verify your application to determine if wiring space is adequate.

342
Disconnect: Wall-Mount Preferred-Cutout Disconnect Enclosures
Homan WATERSHED® Wall-Mount Disconnect Enclosures
PH (763) 422-2211 • FX (763) 422-2600 • homanonline.com
Subject to change without notice © 2011 Pentair Technical Products
Mounting Bracket Kit Type 304 stainless steel brackets are eld-installable. Brackets
maintain Type 4X rating. All hardware is included. Four brackets per
kit.
Top brackets must be mounted to the sides of enclosure.
Bulletin: A80
Catalog Number Description
CMFKSS Type 304 stainless steel mounting bracket kit
Stand-O Kit
Stand-os provide space between wall-mount enclosure and wall
for better washdown accessibility. Maintains Type 4X rating. Sealing
washers included. Four stand-os per kit.
Bulletin: WSY
Catalog Number C (in.) C (mm)
WSSOK1SS 1.00 25
WSSOK2SS 2.00 51
WSSOK4SS 4.00 102
WSSOK6SS 6.00 152
Padlocking Handle Kit Type 304 stainless steel padlocking handle for use on Homan
WATERSHED® Wall-Mount Enclosures. Maintains Type 4X rating.
Bulletin: WSY
Catalog Number Description
WSHPL Stainless Steel Padlocking Handle
Padlocking Latch Kit Type 304 stainless steel padlocking latch for use on Homan
WATERSHED® Wall-Mount Enclosures. Maintains Type 4X rating.
Bulletin: WSY
Catalog Number Description
WSLPL Padlocking Latch Kit

343
Disconnect: Wall-Mount Preferred-Cutout Disconnect Enclosures
Homan WATERSHED® Wall-Mount Disconnect Enclosures
PH (763) 422-2211 • FX (763) 422-2600 • homanonline.com
Subject to change without notice © 2011 Pentair Technical Products
Notes

344
Disconnect: Wall-Mount Fixed-Depth Allen-Bradley Disconnect Enclosures
Wall-Mount Fixed-Depth AB Cutout Overview
PH (763) 422-2211 • FX (763) 422-2600 • homanonline.com
Subject to change without notice © 2011 Pentair Technical Products
Wall-Mount Fi xed-Dep th Allen- Bradley Di sconnec t Enclosur es
Wall-Mount Fi xed-Dep th AB Cutout Ove rview
Fixed-Depth Allen-Bradley Cutout Overview
Application
Enclosures having the “Allen-Bradley” cutout are ONLY compatible
with xed-depth Allen-Bradley devices up to 1494F Series C. This
cutout is ONLY found on A22 Enclosures and on adapter plates in the
A21ABA Adapter Kit.
Ordering
The disconnect switch, operating handle, and operating mechanism
must be ordered separately. See Technical Information in the
Homan Specier’s Guide for wire bend space available, or
Disconnect Ordering Information at homanonline.com for
disconnect ordering guidelines and wire bend space available.
Check the enclosure dimension drawings to make sure the chosen
disconnect switch will t in the enclosure.
A complete assembly consists of:
1. An enclosure
2. Guide bracket(s) and door catch welded to door
3. Locking bar(s) for door hardware
4. Spacers and screws to support disconnect to panel
5. Instructions to locate and install disconnects

345
Disconnect: Wall-Mount Fixed-Depth Allen-Bradley Disconnect Enclosures
Type 12, 13 Fixed-Depth AB Disconnects
PH (763) 422-2211 • FX (763) 422-2600 • homanonline.com
Subject to change without notice © 2011 Pentair Technical Products
Type 12, 13 Fixed-Depth AB D isconne cts
Allen-Bradley® 1494 Cutout Disconnect Enclosure, Type 12
Industry Standards
UL 508A Listed; Type 12, 13; File No. E61997
cUL Listed per CSA C22.2 No. 94; Type 12, 13; File No. E61997
NEMA/EEMAC Type 12, 13
CSA File No. 42186: Type 12
IEC 60529, IP65
Application
These enclosures house Allen-Bradley® Bulletin 1494F ange-mount
disconnect switches and Bulletin 1494D ange-mount operators for
circuit breakers.
Furnished with Enclosure
1. Guide bracket(s) and door catch welded to door
2. Locking bar(s) for door hardware
3. Spacers and screws to support disconnect to panel
4. Instructions to locate and install disconnects
Specications
• 14 gauge steel
• Seams continuously welded and ground smooth
• External mounting brackets
• External-formed ange around all sides of enclosure opening
• Removable door with continuous hinge
• Type 12 rated door gasket
• Collar studs provided for mounting optional panels
• Holes provided in body and door for mounting disconnect switch,
operating mechanism and door hardware
• Data pocket is high impact thermoplastic
• Guide bracket(s) and door catch welded to door
• Includes locking bar(s) for door hardware, spacers and screws
to support disconnect panel, and instructions for installing
disconnects
Finish
White inside with ANSI 61 gray outside nish.
Accessories
See also Accessories.
Blank Adapter Plates, Mild Steel
Electric Heater
Compact Cooling Fans
PANELITE™ Enclosure Lights Overview
Panels for Type 3R, 4, 4X, 12 and 13 Enclosures
Steel and Stainless Steel Window Kits
Modication and Customization
Homan excels at modifying and customizing products to your
specications. Contact your local Homan sales oce or distributor
for complete information.
Bulletin: A22

346
Disconnect: Wall-Mount Fixed-Depth Allen-Bradley Disconnect Enclosures
Type 12, 13 Fixed-Depth AB Disconnects
PH (763) 422-2211 • FX (763) 422-2600 • homanonline.com
Subject to change without notice © 2011 Pentair Technical Products
Standard Product
Catalog Number AxBxC in./mm Panel Conductive Panel
Panel Size
D x E
in./mm
Data Pocket Size
in./mm
A20AB2208LP 20.00 x 21.38 x 8.00
508 x 543 x 203
A20P20 A20P20G 17.00 x 17.00
432 x 432
6.00 x 6.00
152 x 152
A24AB2208LP 24.00 x 21.38 x 8.00
610 x 543 x 203
A24P20 A24P20G 21.00 x 17.00
533 x 432
6.00 x 6.00
152 x 152
A24AB2608LP 24.00 x 25.38 x 8.00
610 x 645 x 203
A24P24 A24P24G 21.00 x 21.00
533 x 533
6.00 x 6.00
152 x 152
A30AB2208LP 30.00 x 21.38 x 8.00
762 x 543 x 203
A30P20 A30P20G 27.00 x 17.00
686 x 432
6.00 x 6.00
152 x 152
A36AB2608LP 36.00 x 25.38 x 8.00
914 x 645 x 203
A36P24 A36P24G 33.00 x 21.00
838 x 533
12.00 x 12.00
305 x 305
A24AB2210LP 24.00 x 21.38 x 10.00
610 x 543 x 254
A24P20 A24P20G 21.00 x 17.00
533 x 432
6.00 x 6.00
152 x 152
A24AB2610LP 24.00 x 25.38 x 10.00
610 x 645 x 254
A24P24 A24P24G 21.00 x 21.00
533 x 533
6.00 x 6.00
152 x 152
A30AB2210LP 30.00 x 21.38 x 10.00
762 x 543 x 254
A30P20 A30P20G 27.00 x 17.00
686 x 432
6.00 x 6.00
152 x 152
A30AB2610LP 30.00 x 25.38 x 10.00
762 x 645 x 254
A30P24 A30P24G 27.00 x 21.00
686 x 533
12.00 x 12.00
305 x 305
A36AB2610LP 36.00 x 25.38 x 10.00
914 x 645 x 254
A36P24 A36P24G 33.00 x 21.00
838 x 533
12.00 x 12.00
305 x 305
A36AB3210LP 36.00 x 31.38 x 10.00
914 x 797 x 254
A36P30 A36P30G 33.00 x 27.00
838 x 686
12.00 x 12.00
305 x 305
A42AB3210LP 42.00 x 31.38 x 10.00
1067 x 797 x 254
A42P30 A42P30G 39.00 x 27.00
991 x 686
6.00 x 6.00
152 x 152
A42AB3810LP 42.00 x 37.38 x 10.00
1067 x 949 x 254
A42P36 A42P36G 39.00 x 33.00
991 x 838
12.00 x 12.00
305 x 305
A48AB3810LP 48.00 x 37.38 x 10.00
1219 x 949 x 254
A48P36 A48P36G 45.00 x 33.00
1143 x 838
12.00 x 12.00
305 x 305
A60AB3810LP 60.00 x 37.38 x 10.00
1524 x 949 x 254
A60P36 A60P36G 57.00 x 33.00
1448 x 838
12.00 x 12.00
305 x 305
A36AB3212LP 36.00 x 31.38 x 12.00
914 x 797 x 305
A36P30 A36P30G 33.00 x 27.00
838 x 686
12.00 x 12.00
305 x 305
A42AB3212LP 42.00 x 31.38 x 12.00
1067 x 797 x 305
A42P30 A42P30G 39.00 x 27.00
991 x 686
6.00 x 6.00
152 x 152
A42AB3812LP 42.00 x 37.38 x 12.00
1067 x 949 x 305
A42P36 A42P36G 39.00 x 33.00
991 x 838
12.00 x 12.00
305 x 305
A48AB3812LP 48.00 x 37.38 x 12.00
1219 x 949 x 305
A48P36 A48P36G 45.00 x 33.00
1143 x 838
12.00 x 12.00
305 x 305
A60AB3812LP 60.00 x 37.38 x 12.00
1524 x 949 x 305
A60P36 A60P36G 57.00 x 33.00
1448 x 838
12.00 x 12.00
305 x 305
A48AB3816LP 48.00 x 37.38 x 16.00
1219 x 949 x 406
A48P36 A48P36G 45.00 x 33.00
1143 x 838
12.00 x 12.00
305 x 305
A60AB3816LP 60.00 x 37.38 x 16.00
1524 x 949 x 406
A60P36 A60P36G 57.00 x 33.00
1448 x 838
12.00 x 12.00
305 x 305
Purchase panels separately.

347
Disconnect: Wall-Mount Fixed-Depth Allen-Bradley Disconnect Enclosures
Type 12, 13 Fixed-Depth AB Disconnects
PH (763) 422-2211 • FX (763) 422-2600 • homanonline.com
Subject to change without notice © 2011 Pentair Technical Products
Disconnect Mounting Space
Disconnects will occupy space on panel shown by dimensions E1, F1
and G1. Wiring space W1 is available when disconnect is installed in
the enclosure.
E1 = 6.75 in. (171 mm) when C = 10.00 in. (254 mm)
E1 = 9.50 in. (241 mm) when C = 12.00 in. (305 mm) except enclosures
for 200 A switches)
E1 = 9.50 in. (241 mm) when C = 16.00 in. (406 mm)
W1 = Wiring Space
Refer to NATIONAL ELECTRICAL CODE, 2005 article 430-10(b) for
wiring space required for line side conductors to be connected to
disconnect.
Verify your application to determine if wiring space is adequate.
Consult Space Occupied by Disconnect drawing to determine whether
the disconnect device you are using will t the enclosure size you have
selected.

348
Disconnect: Free-Stand Preferred-Cutout Disconnect Enclosures
Free-Stand Preferred-Cutout Disconnect Overview
PH (763) 422-2211 • FX (763) 422-2600 • homanonline.com
Subject to change without notice © 2011 Pentair Technical Products
Free-Stand Pre ferred- Cutout Disc onnect En closures
Free-Stand Pre ferred- Cutout Disc onnect Ove rview
Preferred-Cutout Overview
Application
Enclosures having the preferred cutout are sized for use with up to
200A disconnect switches and up to 400A circuit breakers unless
otherwise specied. The preferred cutout accepts the smaller
operating handle whose mounting hole centers are 4.688 in. apart.
Preferred cutouts are standard in mild steel wall-mount enclosures,
modular enclosures and some select large mild steel enclosures. They
are also present on all standard stainless steel oerings.
Operator adapter for preferred cutouts must be ordered separately to
be used with A21S, A28S4 and A4S enclosures.
Preferred cutouts are designed to house the following:
Allen-Bradley
• Bulletin 1494V disconnect switches with ange-mount variable-
depth operating mechanisms and Bulletin 1494V ange-mount
variable-depth operating mechanisms for circuit breakers
• Bulletin 140U exible cable operating mechanisms for 140U
molded case circuit breakers
• Bulletin 1494C cable-operated disconnect switches with ange-
mount handles
• Bulletin 194RC cable-operated ange-mount handles for use with
the NFPA 79 compliant 194R IEC rotary disconnect switches
Allen-Bradley Bulletin 1494V-R1, -R2 and -W2 operating handles and
Allen-Bradley Bulletin 1494F disconnect devices or Bulletin 1494D circuit
breaker operators will NOT t these enclosures.
ABB Controls ange-mount variable-depth operating mechanisms
for disconnect switches and circuit breakers. Also the cable version
for circuit breakers.
Eaton Cutler-Hammer Type C361 ange-mount variable-depth
operating mechanisms with disconnect switches and Type C371
ange-mount variable-depth operating mechanisms for circuit
breakers.
General Electric Type STDA ange handles and variable-depth
operating mechanisms for disconnect switches and circuit breakers.
Also SPECTRAFLEX™ cable operators for circuit breakers.
Siemens ITE MAX FLEX® ange-mount variable-depth operating
handles for circuit breakers.
Schneider Square D® Class 9422 disconnect switches with ange-
mount variable-depth operating mechanisms or cable mechanisms
and Class 9422 ange-mount variable-depth operating mechanisms
or cable mechanisms for circuit breakers.
These enclosures will NOT accept Square D Class 9422 bracket-mounted
disconnect devices, Class 9422TG1 or TG2 devices.
Ordering
Order the disconnect switch, operating handle and operating
mechanism separately. See Technical Information in the Homan
Specier’s Guide for wire bend space available when various
manufacturers’ disconnect switches are installed or Disconnect
Ordering Information at homanonline.com for disconnect ordering
guidelines and wire bend space available. Check the enclosure
dimension drawings to verify the chosen disconnect switch will t in
the enclosure.
All 24.12-in. (613-mm) and deeper enclosures using short
connecting rods by the following manufacturers require a Homan
platform assembly, catalog number ADSCPA, purchased separately.
• ABB Controls ange-operated devices
• Eaton Cutler-Hammer C361 devices
• Eaton Cutler-Hammer C371 mechanisms which use C371E, F, G, K
operating mechanism (see Disconnect Enclosure Accessories)
• General Electric Type TDA devices (see Disconnect Enclosure
Accessories)
• Schneider Square D® Class 9422 devices (see Disconnect Enclosure
Accessories)
The platform assembly can be omitted if long connecting rods are
ordered in place of short connecting rods.
• For Eaton Cutler-Hammer operating mechanisms C371E and C371F
order catalog number C371CS1 connecting rod. For C371G and
C371K order catalog number C371CS2 connecting rod.
• For General Electric devices, order catalog number TDSR extended
length drive rod
• For Schneider Square D devices, order catalog number 9422-R2
extra long operating rod(s). Some devices require two rods.
Consult factory for space occupied on panel when platform is used.

349
Disconnect: Free-Stand Preferred-Cutout Disconnect Enclosures
Free-Stand Disconnect Enclosures and Accessories
PH (763) 422-2211 • FX (763) 422-2600 • homanonline.com
Subject to change without notice © 2011 Pentair Technical Products
Free-Stand Di sconnect E nclosure s and Access ories
Free-Stand Disconnect Enclosure, Type 1
Industry Standards
UL508A Listed; Type 1; File No. E61997
cUL Listed per CSA C22.2 No. 14; Type 1; File No. E61997
NEMA/EEMAC Type 1
IEC 60529 IP30
Application
Free-Stand Disconnect Enclosures, Type 1, are an economical way to
protect electrical and electronic equipment in applications that do
not require extensive environmental protection.
Specications
• 14 gauge steel body and door; 12 gauge back covers
• 4-in. high 10 gauge steel integral lifting base
• Modied preferred disconnect cutout
• Heights from 60 in. to 84 in. Usable height inside cabinet 4 in. less
than nominal height.
• Sturdy 7 gauge lifting tabs
• Flush doors
• 3-point latch with heavy-duty handle
• Screwdriver defeater in handle on master door
• Padlock provision in handle
• Predrilled holes in lifting base provide bolt-down capability
• Bonding provision on each door
• Studs included for mounting optional panels on threaded bolts
• Optional rack angles mount to top and bottom of front anges
Finish
RAL 7035 light gray polyester powder paint inside and outside.
Optional panels have white or conductive nish.
Accessories
See also Accessories.
Rack-Angle Mounted Drawer
Rack-Mount Steel Shelf
Rack Mounting Angle Kit - L Style
Electric Heater
Compact Cooling Fans
Modication and Customization
Homan excels at modifying and customizing products to your
specications. Contact your local Homan sales oce or distributor
for complete information.
Bulletin: A38D

350
Disconnect: Free-Stand Preferred-Cutout Disconnect Enclosures
Free-Stand Disconnect Enclosures and Accessories
PH (763) 422-2211 • FX (763) 422-2600 • homanonline.com
Subject to change without notice © 2011 Pentair Technical Products
Standard Product Free-Stand Type 1 Large One-Door Disconnect Enclosures
Catalog Number AxBxC in./mm Panel Conductive Panel
Panel Size D x E
in./mm Use Rack Angle
A60XN2712FSLP 60.00 x 27.00 x 12.00
1524 x 686 x 305
A49P21N A49P21NG 49.16 x 21.50
1249 x 546
ARA6019THG
A60XN2718FSLP 60.00 x 27.00 x 18.00
1524 x 686 x 457
A49P21N A49P21NG 49.16 x 21.50
1249 x 546
ARA6019THG
A60XN2724FSLP 60.00 x 27.00 x 24.00
1524 x 686 x 610
A49P21N A49P21NG 49.16 x 21.50
1249 x 546
ARA6019THG
A60XN3718FSLP 60.00 x 37.50 x 18.00
1524 x 953 x 457
A49P32N A49P32NG 49.16 x 32.00
1249 x 813
ARA6019THG
A72XN2718FSLP 72.00 x 27.00 x 18.00
1829 x 686 x 457
A61P21N A61P21NG 61.16 x 21.50
1553 x 546
ARA7219THG
A72XN3718FSLP 72.00 x 37.50 x 18.00
1829 x 953 x 457
A61P32N A61P32NG 61.16 x 32.00
1553 x 813
ARA7219THG
A72XN3724FSLP 72.00 x 37.50 x 24.00
1829 x 953 x 610
A61P32N A61P32NG 61.16 x 32.00
1553 x 813
ARA7219THG
A84XN2718FSLP 84.00 x 27.00 x 18.00
2134 x 686 x 457
A73P21N A73P21NG 73.16 x 21.50
1858 x 546
ARA8419THG
A84XN3724FSLP 84.00 x 37.50 x 24.00
2134 x 953 x 610
A73P32N A73P32NG 73.16 x 32.00
1858 x 813
ARA8419THG
Purchase panels separately.

351
Disconnect: Free-Stand Preferred-Cutout Disconnect Enclosures
Free-Stand Disconnect Enclosures and Accessories
PH (763) 422-2211 • FX (763) 422-2600 • homanonline.com
Subject to change without notice © 2011 Pentair Technical Products
Standard Product Free-Stand Type 1 Large Two-Door Disconnect Enclosures
Catalog Number AxBxC in./mm Panel Conductive Panel`
Panel Size D x E
in./mm Use Rack Angle
A60XN5312FSLP 60.00 x 53.50 x 12.00
1524 x 1359 x 305
A49P48N A49P48NG 49.16 x 48.00
1249 x 1219
ARA6019THG
A60XN5318FSLP 60.00 x 53.50 x 18.00
1524 x 1359 x 457
A49P48N A49P48NG 49.16 x 48.00
1249 x 1219
ARA6019THG
A60XN7324FSLP 60.00 x 73.50 x 24.00
1524 x 1867 x 610
A49P68N A49P68NG 49.16 x 68.00
1249 x 1727
ARA6019THG
A72XN7318FSLP 72.00 x 73.50 x 18.00
1829 x 1867 x 457
A61P68N A61P68NG 61.16 x 68.00
1553 x 1727
ARA7219THG
A72XN7324FSLP 72.00 x 73.50 x 24.00
1829 x 1867 x 610
A61P68N A61P68NG 61.16 x 68.00
1553 x 1727
ARA7219THG
A84XN7318FSLP 84.00 x 73.50 x 18.00
2134 x 1867 x 457
A73P68N A73P68NG 73.16 x 68.00
1858 x 1727
ARA8419THG
A84XN7324FSLP 84.00 x 73.50 x 24.00
2134 x 1867 x 610
A73P68N A73P68NG 73.16 x 68.00
1858 x 1727
ARA8419THG
Purchase panels separately.

352
Disconnect: Free-Stand Preferred-Cutout Disconnect Enclosures
Free-Stand Disconnect Enclosures and Accessories
PH (763) 422-2211 • FX (763) 422-2600 • homanonline.com
Subject to change without notice © 2011 Pentair Technical Products
Disconnect Mounting Space
Disconnect is located 11.62 in. from outside top of enclosure. Wiring space is available when disconnect is installed in the enclosure.
See Technical Information section for wire bend space.
Refer to NATIONAL ELECTRICAL CODE, 2005 article 430-10(b) for wiring space required for line side conductors to be connected to
disconnect. Verify your application to determine whether wiring space is adequate.
Consult Space Occupied by Disconnect drawing to determine whether the disconnect device you are using will t the enclosure size you have selected.
Gasket Kits
Apply self-adhesive strip gaskets for gasketed NEMA 1 solution. Each
kit includes sucient gasket for any one- or two-door enclosure.
Choose kit by number of doors.
Bulletin: A38P
Catalog Number Description
A38GSKT For one-door enclosures
A38GSKT2 For two-door enclosures

353
Disconnect: Free-Stand Preferred-Cutout Disconnect Enclosures
PROLINE-DD Modular Enclosures and Accessories
PH (763) 422-2211 • FX (763) 422-2600 • homanonline.com
Subject to change without notice © 2011 Pentair Technical Products
PROLINE-DD M odular En closures a nd Accesso ries
PROLINE®-DD Disconnect Enclosure, Type 12
Industry Standards
UL 508A Listed; Type 12; File Number E61997
cUL Listed per CSA C22.2 No. 94; Type 12; File No. E61997
NEMA/EEMAC Type 12
CSA File Number 42186: Type 12
VDE IP55
IEC 60529, IP55
Application
For a modular disconnect system with application exibility, choose
a PROLINE®-DD Modular Enclosure. These two-door packages and
their components are compatible with any of the standard ange-
mounted disconnect switches and mechanisms described below.
Allen-Bradley
• Bulletin 1494V variable-depth ange-operated disconnect
switches and circuit breaker mechanisms.
• Bulletin 140U exible cable operating mechanisms for 140U
molded case circuit breakers.
These enclosures do not accept Allen-Bradley Bulletin 1494F disconnect
devices or Bulletin 1494D circuit breaker operators.
ABB Controls Disconnect switches up to and including 200 A, also
operators for ABB circuit breakers up to 800 A.
Eaton Cutler-Hammer Variable-depth disconnect switches up to
and including 200 A, operators for C-H Westinghouse circuit breakers
up to 600 A and FLEX SHAFT™ handle mechanisms for circuit
breakers.
General Electric Type TDA variable-depth operating mechanisms
for disconnect switches up to and including 200 A as well as operator
mechanisms or SPECTRAFLEX™ cable operators for circuit breakers
up to 600 amp.
Siemens ITE MAX FLEX™ ange-mounted variable-depth operating
handles for disconnect switches and circuit breakers as well as some
xed-depth operators for disconnect switches.
Schneider Square D Class 9422 disconnect switches up to and
including 200 A, with variable-depth or cable mechanisms for 30, 60
or 100 A. Also circuit breakers with variable-depth operators or cable
mechanisms up to 400 A.
Bulletin: P20DC
Standard Product
Catalog Number AxBxC in./mm
Nominal Size
mm/in.
PTDDC20185 78.11 x 78.18 x 19.65
1984 x 1808 x 499
2000 x 1800 x 500
PTDDC20186 78.11 x 78.18 x 23.58
1984 x 1808 x 599
2000 x 1800 x 600

354
Disconnect: Free-Stand Preferred-Cutout Disconnect Enclosures
PROLINE-DD Modular Enclosures and Accessories
PH (763) 422-2211 • FX (763) 422-2600 • homanonline.com
Subject to change without notice © 2011 Pentair Technical Products

355
Disconnect: Free-Stand Preferred-Cutout Disconnect Enclosures
PROLINE-DD Modular Enclosures and Accessories
PH (763) 422-2211 • FX (763) 422-2600 • homanonline.com
Subject to change without notice © 2011 Pentair Technical Products
Disconnect Mounting Space
Disconnects will occupy space on panel shown by dimensions E1, F1
and G1. Wiring space W1 is available when disconnect is installed in
the enclosure.
See Technical Information for E1 Spacing by Enclosure Height for various
disconnect switch manufacturers.
W1 = Wiring Space.
See Technical Information chapter for wire bend space.
Refer to NATIONAL ELECTRICAL CODE, 2005 article 430-10(b) for
wiring space required for line side conductors to be connected to
disconnect.
Verify your application to determine whether wiring space is
adequate.
Consult Space Occupied by Disconnect drawing to determine whether
the disconnect device you are using will t the enclosure size you have
selected.
PROLINE®-DD Modular Subpanel
The Subpanel mounts inside the PROLINE-DD Modular Enclosures.
The subpanel size is 2000 x 1800 mm and is constructed of 10 gauge
steel. It also has glide blocks to facilitate handling and installation
(hardware is included).
Bulletin: P20
Catalog Number AxB in./mm Type
Used with
Assembled
Enclosure 1
Used with
Assembled
Enclosure 2
PPF2018 78.70 x 70.90
2000 x 1800
Subpanel White Painted Finish PTDDC20185 PTDDC20186
PPF2018G 78.70 x 70.90
2000 x 1800
Subpanel Conductive Finish PTDDC20185 PTDDC20186
PROLINE®-DD Modular 100-mm Bases
These 100-mm solid and plinth bases mount to PROLINE-DD Modular
Enclosures. Gland plates are necessary to maintain Type 12 rating
when using plinth base.
Bulletin: P20
Catalog Number Type
Used with
Assembly D (mm) D (in.)
PB1185 100-mm Solid Base PTDDC20185 459 18.07
PB1186 100-mm Solid Base PTDDC20186 559 22.01
PPB1186 100-mm Plinth Base PTDDC20186 559 22.01

356
Disconnect: Free-Stand Stainless Steel Preferred-Cutout Disconnect Enclosures
Free-Stand Preferred-Cutout Stainless Steel Disconnect Overview
PH (763) 422-2211 • FX (763) 422-2600 • homanonline.com
Subject to change without notice © 2011 Pentair Technical Products
Free-Stand Sta inless Ste el Preferr ed-Cutou t Disconne ct Enclosu res
Free-Stand Pre ferred- Cutout Stai nless Stee l Disconne ct Overvie w
Preferred-Cutout Overview
Application
Enclosures having the preferred cutout are sized for use with up to
200 A disconnect switches and up to 400A circuit breakers unless
otherwise specied. The preferred cutout accepts the smaller
operating handle whose mounting hole centers are 4.688 in. apart.
Preferred cutouts are standard in mild steel wall-mount enclosures,
modular enclosures and some select large mild steel enclosures. They
are also present on all standard stainless steel oerings.
Operator adapters for preferred cutouts must be ordered separately
to be used with A21S, A28S4, WS2D and A4S enclosures.
Preferred cutouts are designed to house the following:
Allen-Bradley
• Bulletin 1494V disconnect switches with ange-mount variable-
depth operating mechanisms and Bulletin 1494V ange-mount
variable-depth operating mechanisms for circuit breakers
• Bulletin 140U exible cable operating mechanisms for 140U
molded case circuit breakers
• Bulletin 1494C cable-operated disconnect switches with ange-
mount handles
• Bulletin 194RC cable-operated ange-mount handles for use with
the NFPA 79 compliant 194R IEC rotary disconnect switches
Allen-Bradley Bulletin 1494V-R1, -R2 and -W2 operating handles and
Allen-Bradley Bulletin 1494F disconnect devices or Bulletin 1494D circuit
breaker operators will NOT t these enclosures.
ABB Controls ange-mount variable-depth operating mechanisms
for disconnect switches and circuit breakers. Also the cable version
for circuit breakers.
Eaton Cutler-Hammer Type C361 ange-mount variable-depth
operating mechanisms with disconnect switches and Type C371
ange-mount variable-depth operating mechanisms for circuit
breakers.
General Electric Type STDA ange handles and variable-depth
operating mechanisms for disconnect switches and circuit breakers.
Also SPECTRAFLEX™ cable operators for circuit breakers.
Siemens ITE MAX FLEX® ange-mount variable-depth operating
handles for circuit breakers.
Schneider Square D® Class 9422 disconnect switches with ange-
mount variable-depth operating mechanisms or cable mechanisms
and Class 9422 ange-mount variable-depth operating mechanisms
or cable mechanisms for circuit breakers.
These enclosures will NOT accept Square D Class 9422 bracket-mounted
disconnect devices, Class 9422TG1 or TG2 devices.
Ordering
Order the disconnect switch, operating handle and operating
mechanism separately. See Technical Information in the Homan
Specier’s Guide for wire bend space available when various
manufacturers’ disconnect switches are installed or Disconnect
Ordering Information at homanonline.com for disconnect ordering
guidelines and wire bend space available. Check the enclosure
dimension drawings to verify the chosen disconnect switch will t in
the enclosure.
All 24.12-in. (613-mm) and deeper enclosures using short
connecting rods by the following manufacturers require a Homan
platform assembly, catalog number ADSCPA, purchased separately.
• ABB Controls ange-operated devices
• Eaton Cutler-Hammer C361 devices
• Eaton Cutler-Hammer C371 mechanisms which use C371E, F, G, K
operating mechanism (see Disconnect Enclosure Accessories)
• General Electric Type TDA devices (see Disconnect Enclosure
Accessories)
• Schneider Square D® Class 9422 devices (see Disconnect Enclosure
Accessories)
The platform assembly can be omitted if long connecting rods are
ordered in place of short connecting rods.
• For Eaton Cutler-Hammer operating mechanisms C371E and C371F
order catalog number C371CS1 connecting rod. For C371G and
C371K order catalog number C371CS2 connecting rod.
• For General Electric devices, order catalog number TDSR extended
length drive rod
• For Schneider Square D devices, order catalog number 9422-R2
extra long operating rod(s). Some devices require two rods.
Consult factory for space occupied on panel when platform is used.

357
Disconnect: Free-Stand Stainless Steel Preferred-Cutout Disconnect Enclosures
Stainless Steel Two-Door Disconnect Enclosure
PH (763) 422-2211 • FX (763) 422-2600 • homanonline.com
Subject to change without notice © 2011 Pentair Technical Products
Stainless Ste el Two-Door D isconnec t Enclosu re
Two-Door Stainless Steel Enclosures for Flange-Mounted Disconnects, Type 4X
Industry Standards
UL 508A Listed; Type 3R, 4, 4X, 12; File No. E61997
cUL Listed per CSA C22.2 No. 94; Type 3R, 4, 4X, 12; File No.
E61997
NEMA/EEMAC Type 3R, 4, 4X, 12
CSA File No. 42186: Type 4, 4X, 12
IEC 60529, IP66
Meets NEMA Type 3RX requirements
Specications
• Manufactured from 12 gauge Type 304 stainless steel
• Seams continuously welded and ground smooth
• Body stieners in larger enclosures for extra rigidity
• Body ange trough collar excludes liquids and contaminants
• Removable centerposts permit easy panel installation
• Heavy-gauge continuous hinges
• Rollers on ends of latch rods for easier door closing
• Heavy-duty lifting eyes are Type 316 stainless steel
• Data pocket is high-impact thermoplastic
• 15-in. oor stands are welded to enclosure
• Seamless foam-in-place gasket provides oil-tight and dust-tight
seal against contaminants
• Panel supports
• Collar studs provided for mounting optional panels
• Heavy-duty 3-point latching mechanism operated by Type 316
stainless steel POWERGLIDE® padlocking handle on all doors
• Masterdoor is right-hand door on X enclosures and left-hand door
on CPX enclosures
• Type 316 stainless steel handle with defeater on master door
• Type 316 stainless steel handle (non-defeater) on slave door
• Mechanical interlock operated by master door prevents slave door
from being opened rst; doors can be closed in any order
• Preferred cutout on right ange provides mounting for most
disconnect operators
• Bonding provision on doors; grounding studs on body
• Accessory mounting channel provided in enclosure top
Finish
Stainless steel enclosures are unpainted. Sides and body have smooth
#4 brushed nish. Optional mild steel panels are painted white.
Optional conductive panels are available.
Accessories
See also Accessories.
Blank Adapter Plates, Mild Steel
INTERSAFE® Data Interface Ports, Type 4/4X/12
Operator Adapters for Universal Cutouts
PANELITE™ Enclosure Lights Overview
Panels for Type 3R, 4, 4X, 12 and 13 Enclosures
Steel and Stainless Steel Window Kits
Modication and Customization
Homan excels at modifying and customizing products to your
specications. Contact your local Homan sales oce or distributor
for complete information.
Bulletin: A21S4

358
Disconnect: Free-Stand Stainless Steel Preferred-Cutout Disconnect Enclosures
Stainless Steel Two-Door Disconnect Enclosure
PH (763) 422-2211 • FX (763) 422-2600 • homanonline.com
Subject to change without notice © 2011 Pentair Technical Products
Standard Product Two-Door with Provision for Disconnect Operator on Right Flange
Catalog Number AxBxC in./mm Panel
Conductive
Panel
Panel Size
D x E
in./mm
A60X4912SSLPN4 60.12 x 49.75 x 12.12
1527 x 1264 x 308
A60P48 A60P48G 56.00 x 44.00
1422 x 1118
A60X6112SSLPN4 60.12 x 61.75 x 12.12
1527 x 1568 x 308
A60P60 A60P60G 56.00 x 56.00
1422 x 1422
A72X6112SSLPN4 72.12 x 61.75 x 12.12
1832 x 1568 x 308
A72P60 A72P60G 68.00 x 56.00
1727 x 1422
A72X7312SSLPN4 72.12 x 73.75 x 12.12
1832 x 1873 x 308
A72P72 A72P72G 68.00 x 68.00
1727 x 1727
A60X4918SSLPN4 60.12 x 49.75 x 18.12
1527 x 1264 x 460
A60P48 A60P48G 56.00 x 44.00
1422 x 1118
A60X6118SSLPN4 60.12 x 61.75 x 18.12
1527 x 1568 x 460
A60P60 A60P60G 56.00 x 56.00
1422 x 1422
A72X6118SSLPN4 72.12 x 61.75 x 18.12
1832 x 1568 x 460
A72P60 A72P60G 68.00 x 56.00
1727 x 1422
A72X7318SSLPN4 72.12 x 73.75 x 18.12
1832 x 1873 x 460
A72P72 A72P72G 68.00 x 68.00
1727 x 1727
A72X7324SSLPN4 72.12 x 73.75 x 24.12
1832 x 1873 x 613
A72P72 A72P72G 68.00 x 68.00
1727 x 1727
Purchase panels separately.
All 24.12-in. (613 mm) and deeper enclosures using short connecting rods in the following models require a Homan platform assembly, catalog number ADSCPA, purchased separately. • ABB Controls ange-operated devices
• Eaton Cutler-Hammer C361 devices • Eaton Cutler-Hammer C371 mechanisms which use C371E, F, G, K operating mechanism • General Electric Type TDA devices (see next paragraph for option) • Schneider Square D Class 9422
devices (see next paragraph for option)
The platform assembly can be omitted if long connecting rods are ordered in place of short connecting rods. • For Eaton Cutler-Hammer operating mechanisms C371E and C371F order catalog number C371CS1 connecting rod.
For C371G and C371K order catalog number C371CS2 connecting rod. • For General Electric devices, order catalog number TDSR extended length drive rod • For Schneider Square D devices, order catalog number 9422-R2 extra
long operating rod(s). Some devices require two rods. Consult factory for space occupied on panel when platform is used.

359
Disconnect: Free-Stand Stainless Steel Preferred-Cutout Disconnect Enclosures
Stainless Steel Two-Door Disconnect Enclosure
PH (763) 422-2211 • FX (763) 422-2600 • homanonline.com
Subject to change without notice © 2011 Pentair Technical Products
Standard Product Two-Door with Provision for Disconnect Operator on Centerpost
Catalog Number AxBxC in./mm Panel
Conductive
Panel
Panel Size
D x E
in./mm
A60CPX4812SSLPN4 60.12 x 48.50 x 12.12
1527 x 1232 x 308
A60P48 A60P48G 56.00 x 44.00
1422 x 1118
A60CPX6012SSLPN4 60.12 x 60.50 x 12.12
1527 x 1537 x 308
A60P60 A60P60G 56.00 x 56.00
1422 x 1422
A72CPX7212SSLPN4 72.12 x 72.50 x 12.12
1832 x 1842 x 308
A72P72 A72P72G 68.00 x 68.00
1727 x 1727
A72CPX7218SSLPN4 72.12 x 72.50 x 18.12
1832 x 1842 x 460
A72P72 A72P72G 68.00 x 68.00
1727 x 1727
Purchase panels separately.

360
Disconnect: Free-Stand Stainless Steel Preferred-Cutout Disconnect Enclosures
Stainless Steel Two-Door Disconnect Enclosure
PH (763) 422-2211 • FX (763) 422-2600 • homanonline.com
Subject to change without notice © 2011 Pentair Technical Products
Disconnect Mounting Space
Disconnects will occupy space on panel shown by dimensions E1, F1, G1 and K. Wiring Space W1 is available when disconnect is installed in
the enclosure. See the Technical Information chapter for E1 Spacing by Enclosure Height for various disconnect switch manufacturers.
Refer to National Electrical Code®, 2005 article 430-10(b) for wiring space required for line side conductors to be connected to disconnect.
Verify your application to determine if wiring space is adequate.

361
Disconnect: Free-Stand Stainless Steel Preferred-Cutout Disconnect Enclosures
Stainless Steel Two-Door Disconnect Enclosure
PH (763) 422-2211 • FX (763) 422-2600 • homanonline.com
Subject to change without notice © 2011 Pentair Technical Products
Notes

362
Disconnect: Free-Stand Stainless Steel Preferred-Cutout Disconnect Enclosures
Stainless Steel General Purpose Disconnect Enclosures
PH (763) 422-2211 • FX (763) 422-2600 • homanonline.com
Subject to change without notice © 2011 Pentair Technical Products
Stainless Ste el Genera l Purpose Di sconnect E nclosure s
General Purpose Stainless Steel Two-Door Floor-Mount Disconnect Enclosures, Type 4X
Industry Standards
UL508A Listed; Type 3R, 4, 4X, 12; File No. E61997
cUL Listed per CSA C22.2 No. 94; Type 3R, 4, 4X, 12; File No.
E61997
NEMA/EEMAC: Type 3R, 4, 4X, 12
IEC 60529, IP66
Meets NEMA Type 3RX requirements
Application
This disconnect enclosure is designed to house electronic controls
and components. It provides protection from noncorrosive or mildly
corrosive elements in both indoor and outdoor environments.
Typical applications are in the food and beverage, packaging, water,
petroleum and chemical processing industries. Designed to house
the most popular disconnect switches and circuit breakers.
Features
• Seams continuously welded and ground smooth
• Seamless foam-in-place one-piece gasket provides water-, oil- and
dust-tight seal against contaminants
• Heavy-duty three-point latching mechanism on each door,
operated by Homan’s black die-cast POWERGLIDE® padlocking
handle. Black die-cast quarter-turn latches with slotted insert
provided on the top and bottom of each door.
• Master door is far right-hand door on all enclosures
• Master door handle provided with integral screwdriver defeater
• Mechanical interlock activated by master door prevents slave door
from being opened rst. Doors can be closed in any order.
• Concealed hinges provide 180-degree door opening and allow
easy door removal and cleaning of hinge area
• Bolt-on 15-in.-high stainless steel oor stands
• Heavy-duty Type 316L stainless steel lifting eyes
• Collar studs on inside of enclosure back for optional mounting
panels
• Removable centerpost for easy panel installation
• Bonding provisions on doors and ground studs on body
• No interior stieners to obstruct component mounting
• Provisions for mounting optional uorescent light packages
Specications
• 14 gauge doors and 12 gauge body from Type 304 stainless steel
• Flange trough collar on all four sides of door openings
•
Data pocket is high-impact plastic attached with pressure-sensitive
adhesive
• Preferred cutout on right-hand ange provides mounting for most
disconnect operators
Finish
Stainless steel enclosures are unpainted. External surfaces of front,
sides, top and bottom have a #4 nish. Interior welds are not nished.
Optional panels have white or conductive nish.
Accessories
See also Accessories.
Electric Heater
Electrical Interlocks
PANELITE™ Enclosure Lights Overview
Panels for Type 3R, 4, 4X, 12 and 13 Enclosures
Steel and Stainless Steel Window Kits
Modication and Customization
Homan excels at modifying and customizing products to your
specications. Contact your local Homan sales oce or distributor
for complete information.
Bulletin: A4S2

363
Disconnect: Free-Stand Stainless Steel Preferred-Cutout Disconnect Enclosures
Stainless Steel General Purpose Disconnect Enclosures
PH (763) 422-2211 • FX (763) 422-2600 • homanonline.com
Subject to change without notice © 2011 Pentair Technical Products
Standard Product
Catalog Number AxBxC in./mm Panel
Conductive
Panel
Panel Size
D x E
in./mm
No. of
Quarter-turn
Latches
A60HX4912SSLPQT 60.06 x 49.31 x 12.06
1526 x 1253 x 306
A60P48 A60P48G 56.00 x 44.00
1422 x 1118
4
A60HX4918SSLPQT 60.06 x 49.31 x 18.06
1526 x 1253 x 459
A60P48 A60P48G 56.00 x 44.00
1422 x 1118
4
A60HX6112SSLPQT 60.06 x 61.31 x 12.06
1526 x 1557 x 306
A60P60 A60P60G 56.00 x 56.00
1422 x 1422
4
A60HX6118SSLPQT 60.06 x 61.31 x 18.06
1526 x 1557 x 459
A60P60 A60P60G 56.00 x 56.00
1422 x 1422
4
A72HX6112SSLPQT 72.06 x 61.31 x 12.06
1830 x 1557 x 306
A72P60 A72P60G 68.00 x 56.00
1727 x 1422
4
A72HX6118SSLPQT 72.06 x 61.31 x 18.06
1830 x 1557 x 459
A72P60 A72P60G 68.00 x 56.00
1727 x 1422
4
A72HX7312SSLPQT 72.06 x 73.31 x 12.06
1830 x 1862 x 306
A72P72 A72P72G 68.00 x 68.00
1727 x 1727
4
A72HX7318SSLPQT 72.06 x 73.31 x 18.06
1830 x 1862 x 459
A72P72 A72P72G 68.00 x 68.00
1727 x 1727
4
A72HX7324SSLPQT 72.06 x 73.31 x 24.06
1830 x 1862 x 611
A72P72 A72P72G 68.00 x 68.00
1727 x 1727
4
Purchase panels separately
All 24.12-in. (613-mm) and deeper enclosures using short connecting rods in the following models require a Homan platform assembly, catalog number ADSCPA, purchased separately. • ABB Controls ange-operated devices
• Eaton Cutler-Hammer C361 devices • Eaton Cutler-Hammer C371 mechanisms which use C371E, F, G, K operating mechanism • General Electric Type TDA devices (see next paragraph for option) • Schneider Square D Class 9422
devices (see next paragraph for option)
The platform assembly can be omitted if long connecting rods are ordered in place of short connecting rods. • For Eaton Cutler-Hammer operating mechanisms C371E and C371F order catalog number C371CS1 connecting rod.
For C371G and C371K order catalog number C371CS2 connecting rod. • For General Electric devices, order catalog number TDSR extended length drive rod • For Schneider Square D devices, order catalog number 9422-R2 extra
long operating rod(s). Some devices require two rods. Consult factory for space occupied on panel when platform is used.

364
Disconnect: Free-Stand Stainless Steel Preferred-Cutout Disconnect Enclosures
Stainless Steel General Purpose Disconnect Enclosures
PH (763) 422-2211 • FX (763) 422-2600 • homanonline.com
Subject to change without notice © 2011 Pentair Technical Products
General Purpose Single-Door Free-Stand Disconnect, Type 4X
Industry Standards
UL508A Listed; Type 3R, 4, 4X, 12; File No. E61997
cUL Listed per CSA C22.2 No. 94; Type 3R, 4, 4X, 12; File No.
E61997
NEMA/EEMAC: Type 3R, 4, 4X, 12
IEC 60529, IP66
Meets NEMA Type 3RX
Application
This single door stainless steel enclosure with quarter-turn latches is
designed to house electronic controls and components. It provides
protection from non-corrosive or mildly corrosive elements in both
indoor and outdoor environments. Typical applications are in the
pharmaceutical, food and beverage, packaging, water, petroleum
and chemical processing industries.
Specications
• Type 304 stainless steel 14 gauge doors and body, and 14 or 12
gauge back
• Seams continuously welded and ground smooth
• Flange trough collar on all four sides of door openings
• Seamless foam-in-place one-piece gasket provides water-, oil- and
dust-tight seal against contaminants
• Heavy-duty three-point latching mechanism on each door,
operated by Homan’s black die-cast POWERGLIDE® padlocking
handle. Black die-cast quarter-turn latches with slotted insert
provided on the top and bottom of each door.
• Black Die-Cast POWERGLIDE handle has integral screwdriver
defeater
• Collar studs on inside of enclosure back for optional mounting
panels
• Concealed stainless steel hinges provide 180-degree door
opening and allow easy door removal and cleaning of hinge area
• Heavy-duty Type 316L stainless steel lifting eyes
• Bonding provision on door; grounding stud on body
• High-impact plastic Data Pocket kit included with enclosure
• Accessory mounting channel provided in enclosure top
Finish
Stainless steel enclosures are unpainted. External surfaces of front,
sides, top and bottom have a #4 nish. Interior welds are not nished.
Optional mild steel back panels are painted white. Optional
conductive back panels are available.
Accessories
See also Accessories.
Heaters
PANELITE™ Enclosure Lights Overview
Panel Support Kit
Panels for Type 3R, 4,4X, 12 and 13 Enclosures
Stainless Steel Window Kits
Modication and Customization
Homan excels at modifying and customizing products to your
specications. Contact your local Homan sales oce or distributor
for complete information.
Bulletin: A30S4
Standard Product
Catalog Number AxBxC in./mm Panel
Conductive
Panel
Panel Size D x E
in./mm
A72HXS2718SSLPQT 72.13 x 26.50 x 18.13
1832 x 673 x 461
A72PM28 A72PM28G 60.00 x 21.75
1524 x 552
A72HXS3224SSLPQT 72.13 x 32.50 x 24.12
1832 x 826 x 613
A72PM34 A72PM34G 60.00 x 27.75
1524 x 705
A72HXS3924SSLPQT 72.13 x 38.50 x 24.15
1832 x 978 x 613
A72PM40 A72PM40G 60.00 x 33.75
1524 x 857

365
Disconnect: Free-Stand Stainless Steel Preferred-Cutout Disconnect Enclosures
Stainless Steel General Purpose Disconnect Enclosures
PH (763) 422-2211 • FX (763) 422-2600 • homanonline.com
Subject to change without notice © 2011 Pentair Technical Products
%
&
%

366
Disconnect: Free-Stand Stainless Steel Preferred-Cutout Disconnect Enclosures
Stainless Steel General Purpose Disconnect Enclosures
PH (763) 422-2211 • FX (763) 422-2600 • homanonline.com
Subject to change without notice © 2011 Pentair Technical Products
Disconnect Mounting Space
Disconnects will occupy space on panel shown by dimensions E1, F1,
G1 and K. Wiring Space W1 is available when disconnect is installed in
the enclosure.
See the Technical Information chapter for E1 Spacing by Enclosure Height
for various disconnect switch manufacturers.
Refer to National Electrical Code®, 2005 article 430-10(b) for wiring
space required for line side conductors to be connected to
disconnect.
Verify your application to determine if wiring space is adequate.
All 24.12-in. (613-mm) and deeper enclosures using short
connecting rods by the following manufacturers require a Homan
platform assembly, catalog number ADSCPA, purchased separately.
• ABB Controls ange-operated devices
• Eaton Cutler-Hammer C361 devices
• Eaton Cutler-Hammer C371 mechanisms which use C371E, F, G, K
operating mechanism (see Disconnect Enclosure Accessories)
• General Electric Type TDA devices (see Disconnect Enclosure
Accessories)
• Schneider Square D® Class 9422 devices (see Disconnect Enclosure
Accessories)
The platform assembly can be omitted if long connecting rods are
ordered in place of short connecting rods.
• For Eaton Cutler-Hammer operating mechanisms C371E and C371F
order catalog number C371CS1 connecting rod. For C371G and
C371K order catalog number C371CS2 connecting rod.
• For General Electric devices, order catalog number TDSR extended
length drive rod
• For Schneider Square D devices, order catalog number 9422-R2
extra long operating rod(s). Some devices require two rods.
Consult factory for space occupied on panel when platform is used.
Be sure to match the disconnect device you are using with the
correct enclosure size.
A Complete Assembly Consists of:
1. An enclosure
2. A panel
3. A disconnect device.
Consult the Technical Information chapter of this catalog for
wire bend information and homanonline.com for disconnect
manufacturer information.
Disconnect switch (or circuit breakers), operating handle and operating
mechanism are not furnished with enclosure.

367
Disconnect: Free-Stand Stainless Steel Preferred-Cutout Disconnect Enclosures
Stainless Steel General Purpose Disconnect Enclosures
PH (763) 422-2211 • FX (763) 422-2600 • homanonline.com
Subject to change without notice © 2011 Pentair Technical Products
Notes

368
Disconnect: Free-Stand Stainless Steel Preferred-Cutout Disconnect Enclosures
Stainless Steel Heavy Duty Disconnect Enclosures
PH (763) 422-2211 • FX (763) 422-2600 • homanonline.com
Subject to change without notice © 2011 Pentair Technical Products
Stainless Ste el Heavy D uty Disco nnect Encl osures
Stainless Steel Heavy-Duty Free-Stand Enclosures for Flange-Mount Disconnects, Type 4X
Industry Standards
UL 508A Listed 508; Type 3R, 4, 4X, 12; File No. E61997
cUL Listed per CSA C22.2 No. 94; Type 3R, 4, 4X, 12; File No.
E61997
NEMA/EEMAC Type 3R, Type 4, 4X, 12
CSA File No. 42186: Type 4, 4X, 12
IEC 60529, IP66
Meets NEMA Type 3RX requirements
Application
This disconnect enclosure is designed to house electronic controls
and components. It provides protection from noncorrosive or mildly
corrosive elements in both indoor and outdoor environments.
Typical applications are in the food and beverage, packaging, water,
petroleum and chemical processing industries. Designed to house
the most popular disconnect switches and circuit breakers.
Specications
• Manufactured from 12 gauge Type 304 stainless steel
• Seams continuously welded and ground smooth
• Body stieners in larger enclosures for extra rigidity
• Body ange trough collar excludes liquids and contaminants
• Heavy-duty lifting eyes anchor into reinforced top
• Removable centerposts permit easy panel installation
• Heavy-gauge continuous hinges
• Heavy-duty 3-point latching mechanism operated by Type 316L
stainless steel POWERGLIDE® padlocking handle on all doors
• Ends of latch rods have rollers for easier door closing
• Panel supports
• Data pocket is high-impact thermoplastic
• Seamless foam-in-place gasket provides oil-tight and dust-tight
seal against contaminants
• Removable 10 gauge steel panels mount on collar studs
• Master door is far right-hand door on all enclosures
• Type 316 stainless steel handle with defeater on master door
• Type 316 stainless steel handle (non-defeater) on slave door
• Mechanical interlock activated by master door prevents slave
doors from being opened rst. Doors can be closed in any order.
• Preferred cutout on right ange provides mounting for most
disconnect operators
• Bonding provision on doors; grounding studs on body
• Accessory mounting channel provided in enclosure top
Finish
Stainless steel enclosures are unpainted. Sides and body have
smooth #4 brushed nish. White mild steel panels are furnished with
enclosure. Optional conductive panels are available.
Accessories
See also Accessories.
Electric Heater
Compact Cooling Fans
Floor Stand Kit
PANELITE™ Enclosure Lights Overview
Operator Adapters for Preferred Cutouts
An operator adapter for a preferred cutout must be ordered separately.
Modication and Customization
Homan excels at modifying and customizing products to your
specications. Contact your local Homan sales oce or distributor
for complete information.
Bulletin: A28S4

369
Disconnect: Free-Stand Stainless Steel Preferred-Cutout Disconnect Enclosures
Stainless Steel Heavy Duty Disconnect Enclosures
PH (763) 422-2211 • FX (763) 422-2600 • homanonline.com
Subject to change without notice © 2011 Pentair Technical Products
Standard Product One-Door Enclosures
Catalog Number AxBxC in. AxBxC mm Panel Conductive Panel Panel Size (in.) Panel Size (mm)
A72XM2818SSN4 72.12 x 28.25 x 18.12 1832 x 718 x 460 A72PM28 A72PM28G 60.00 x 21.75 1524 x 552
A72XM3418SSN4 72.12 x 34.25 x 18.12 1832 x 870 x 460 A72PM34 A72PM34G 60.00 x 27.75 1524 x 705
A72XM4018SSN4 72.12 x 40.25 x 18.12 1832 x 1022 x 460 A72PM40 A72PM40G 60.00 x 33.75 1524 x 857
A84XM4018SSN4 84.12 x 40.25 x 18.12 2137 x 1022 x 460 A84PM40 A84PM40G 72.00 x 33.75 1829 x 857
A90XM4018SSN4 90.12 x 40.25 x 18.12 2289 x 1022 x 460 A90PM40 A90PM40G 78.00 x 33.75 1981 x 857
A90XM4020SSN4 90.12 x 40.25 x 20.12 2289 x 1022 x 511 A90PM40 A90PM40G 78.00 x 33.75 1981 x 857
A84XM4024SSN4 84.12 x 40.25 x 24.12 2137 x 1022 x 613 A84PM40 A84PM40G 72.00 x 33.75 1829 x 857
A90XM4024SSN4 90.12 x 40.25 x 24.12 2289 x 1022 x 613 A90PM40 A90PM40G 78.00 x 33.75 1981 x 857
White mild steel panels are furnished with enclosure. Purchase conductive panels separately.
All 24.12-in. (613-mm) and deeper enclosures using short connecting rods in the following models require a Homan platform assembly, catalog number ADSCPA, purchased separately. • ABB Controls ange-operated devices
• Cutler-Hammer C361 devices • Cutler-Hammer C371 mechanisms which use C371E, F, G, K operating mechanism • General Electric Type TDA devices (see next paragraph for option) • Square D Class 9422 devices (see next
paragraph for option)
The platform assembly can be omitted if long connecting rods are ordered in place of short connecting rods. • For Cutler-Hammer operating mechanisms C371E and C371F order catalog number C371CS1 connecting rod. For
C371G and C371K order catalog number C371CS2 connecting rod. • For General Electric devices, order catalog number TDSR extended length drive rod • For Square D devices, order catalog number 9422-R2 extra long operating
rod(s). Some devices require two rods. Consult factory for space occupied on panel when platform is used.

370
Disconnect: Free-Stand Stainless Steel Preferred-Cutout Disconnect Enclosures
Stainless Steel Heavy Duty Disconnect Enclosures
PH (763) 422-2211 • FX (763) 422-2600 • homanonline.com
Subject to change without notice © 2011 Pentair Technical Products
Standard Product Two-Door Enclosures
Catalog Number AxBxC in. AxBxC mm Panel Conductive Panel Panel Size (in.) Panel Size (mm)
A72XM5418SSN4 72.12 x 54.50 x 18.12 1832 x 1384 x 460 A72PM54 A72PM54G 60.00 x 48.00 1524 x 1219
A72XM6618SSN4 72.12 x 66.50 x 18.12 1832 x 1689 x 460 A72PM66 A72PM66G 60.00 x 60.00 1524 x 1524
A72XM7818SSN4 72.12 x 78.50 x 18.12 1832 x 1994 x 460 A72PM78 A72PM78G 60.00 x 72.00 1524 x 1829
A84XM7818SSN4 84.12 x 78.50 x 18.12 2137 x 1994 x 460 A84PM78 A84PM78G 72.00 x 72.00 1829 x 1829
A90XM7818SSN4 90.12 x 78.50 x 18.12 2289 x 1994 x 460 A90PM78 A90PM78G 78.00 x 72.00 1981 x 1829
A90XM7820SSN4 90.12 x 78.50 x 20.12 2289 x 1994 x 511 A90PM78 A90PM78G 78.00 x 72.00 1981 x 1829
A72XM7824SSN4 72.12 x 78.50 x 24.12 1832 x 1994 x 613 A72PM78 A72PM78G 60.00 x 72.00 1524 x 1829
A84XM7824SSN4 84.12 x 78.50 x 24.12 2137 x 1994 x 613 A84PM78 A84PM78G 72.00 x 72.00 1829 x 1829
A90XM7824SSN4 90.12 x 78.50 x 24.12 2289 x 1994 x 613 A90PM78 A90PM78G 78.00 x 72.00 1981 x 1829
White mild steel panels are furnished with enclosure. Purchase conductive panels separately.

371
Disconnect: Free-Stand Stainless Steel Preferred-Cutout Disconnect Enclosures
Stainless Steel Heavy Duty Disconnect Enclosures
PH (763) 422-2211 • FX (763) 422-2600 • homanonline.com
Subject to change without notice © 2011 Pentair Technical Products
Standard Product Three-Door Enclosures
Catalog Number AxBxC in. AxBxC mm
Large
Panel
Conductive
Large
Panel
Number of
Large
Panels
Size of
Large
Panels (in.)
Size of
Large
Panels (mm)
Small
Panel
Small
Conductive
Panel
Number of
Small
Panels
Size of
Small
Panels (in.)
Size of
Small
Panels (mm)
A72XM3EQ18SSN4 72.12 x 100.75 x 18.12 1832 x 2559 x 460 A72PM66 A72PM66G 1 60.00 x 60.00 1524 x 1524 A72PM34 A72PM34G 1 60.00 x 27.75 1524 x 705
A72XM3EW18SSN4 72.12 x 118.75 x 18.12 1832 x 3016 x 460 A72PM78 A72PM78G 1 60.00 x 72.00 1524 x 1829 A72PM40 A72PM40G 1 60.00 x 33.75 1524 x 857
A84XM3EW18SSN4 84.12 x 118.75 x 18.12 2137 x 3016 x 460 A84PM78 A84PM78G 1 72.00 x 72.00 1829 x 1829 A84PM40 A84PM40G 1 72.00 x 33.75 1829 x 857
A84XM3EW24SSN4 84.12 x 118.75 x 24.12 2137 x 3016 x 613 A84PM78 A84PM78G 1 72.00 x 72.00 1829 x 1829 A84PM40 A84PM40G 1 72.00 x 33.75 1829 x 857
A90XM3EW24SSN4 90.12 x 118.75 x 24.12 2289 x 3016 x 613 A90PM78 A90PM78G 1 78.00 x 72.00 1981 x 1829 A90PM40 A90PM40G 1 78.00 x 33.75 1981 x 857
White mild steel panels are furnished with enclosure. Purchase conductive panels separately.

372
Disconnect: Free-Stand Stainless Steel Preferred-Cutout Disconnect Enclosures
Stainless Steel Heavy Duty Disconnect Enclosures
PH (763) 422-2211 • FX (763) 422-2600 • homanonline.com
Subject to change without notice © 2011 Pentair Technical Products
Standard Product Four- and Five-Door Enclosures
Catalog Number AxBxC in. AxBxC mm
Number of
Doors Panel
Number
of Panels
Size of
Panels (in.)
Sizes of
Panels (mm)
A72XM4EW18SSN4 72.12 x 158.00 x 18.12 1832 x 4013 x 460 4 A72PM78 2 60.00 x 72.00 1524 x 1829
A84XM4EW18SSN4 84.12 x 158.00 x 18.12 2137 x 4013 x 460 4 A84PM78 2 72.00 x 72.00 1829 x 1829
A84XM5EW24SSN4 84.12 x 197.75 x 24.12 2137 x 5023 x 613 5 A84PM78 and A84PM40 2 and 1 72.00 x 72.00 and 72.00 x 33.75 1829 x 1829 and 1329 x 857
White mild steel panels are furnished with enclosure. Optional conductive panels are available.
All 24.12-in. (613-mm) and deeper enclosures using short connecting rods in the following models require a Homan platform assembly, catalog number ADSCPA, purchased separately. • ABB Controls ange-operated devices
• Eaton Cutler-Hammer C361 devices • Eaton Cutler-Hammer C371 mechanisms which use C371E, F, G, K operating mechanism • General Electric Type TDA devices (see next paragraph for option) • Schneider Square D Class 9422
devices (see next paragraph for option)
The platform assembly can be omitted if long connecting rods are ordered in place of short connecting rods. • For Eaton Cutler-Hammer operating mechanisms C371E and C371F order catalog number C371CS1 connecting rod.
For C371G and C371K order catalog number C371CS2 connecting rod. • For General Electric devices, order catalog number TDSR extended length drive rod • For Schneider Square D devices, order catalog number 9422-R2 extra
long operating rod(s). Some devices require two rods. Consult factory for space occupied on panel when platform is used.

373
Disconnect: Free-Stand Stainless Steel Preferred-Cutout Disconnect Enclosures
Stainless Steel Heavy Duty Disconnect Enclosures
PH (763) 422-2211 • FX (763) 422-2600 • homanonline.com
Subject to change without notice © 2011 Pentair Technical Products

374
Disconnect: Free-Stand Stainless Steel Preferred-Cutout Disconnect Enclosures
Stainless Steel Heavy Duty Disconnect Enclosures
PH (763) 422-2211 • FX (763) 422-2600 • homanonline.com
Subject to change without notice © 2011 Pentair Technical Products
Disconnect Mounting Space
Disconnects will occupy space on panel shown by dimensions E1, F1
and G1 in the diagram. Wiring space W1 is available when disconnect
is installed in the enclosure.
See the Technical Information section for E1 Spacing by Enclosure Height
for various disconnect switch manufacturers.
Refer to National Electrical Code®, 2005 article 430-10(b) for wiring
space required for line side conductors to be connected to
disconnect.
Verify your application to determine if wiring space is adequate.
All 24.12-in. (613-mm) and deeper enclosures using short
connecting rods by the following manufacturers require a Homan
platform assembly, catalog number ADSCPA, purchased separately.
• ABB Controls ange-operated devices
• Eaton Cutler-Hammer C361 devices
• Eaton Cutler-Hammer C371 mechanisms which use C371E, F, G, K
operating mechanism (see Disconnect Enclosure Accessories)
• General Electric Type TDA devices (see Disconnect Enclosure
Accessories)
• Schneider Square D® Class 9422 devices (see Disconnect Enclosure
Accessories)
The platform assembly can be omitted if long connecting rods are
ordered in place of short connecting rods.
• For Eaton Cutler-Hammer operating mechanisms C371E and C371F
order catalog number C371CS1 connecting rod. For C371G and
C371K order catalog number C371CS2 connecting rod.
• For General Electric devices, order catalog number TDSR extended
length drive rod
• For Schneider Square D devices, order catalog number 9422-R2
extra long operating rod(s). Some devices require two rods.
Consult factory for space occupied on panel when platform is used.
A Complete Assembly Consists of:
1. An enclosure
2. A panel
3. An operator adapter (see Disconnect Enclosure Accessories in
this publication to select the proper operator adapter for the
brand and type of disconnect being used). Door hardware is
furnished with enclosure.
4. A disconnect device.

375
Disconnect: Free-Stand Stainless Steel Preferred-Cutout Disconnect Enclosures
Stainless Steel Heavy Duty Disconnect Enclosures
PH (763) 422-2211 • FX (763) 422-2600 • homanonline.com
Subject to change without notice © 2011 Pentair Technical Products
Notes

376
Disconnect: Free-Stand Stainless Steel Preferred-Cutout Disconnect Enclosures
Homan WATERSHED® Stainless Steel
PH (763) 422-2211 • FX (763) 422-2600 • homanonline.com
Subject to change without notice © 2011 Pentair Technical Products
Homan WATERSHE D® Stainle ss Steel
Homan WATERSHED® Free-Standing SS Disconnect Enclosures
Industry Standards
UL 508A Listed; Type 3, 3R, 4, 4X, 12; File Number E61997
cUL Listed per CSA C22.2 No. 94; Type 3, 3R, 4, 4X, 12; File No.
E61997
NSF 169
NEMA/EEMAC: Type 3R, 4, 4X, 12
IEC 60529, IP66
Meets NEMA Type 3RX requirements
Application
The Homan WATERSHED® Stainless Steel Free-Stand Disconnect
Enclosure, with its unique design and type 4X rating, is a perfect t
for mounting electrical or high-tech electronic equipment in settings
such as sanitary washdown production environments, petrochemical
plants, pulp and paper facilities, and water treatment plants.
Specications
• Manufactured from 12 gauge Type 304 stainless steel; back is 10
gauge
• Seams continuously welded and ground smooth
• Smooth Type 304 stainless steel lift-o bullet-style hinges
• Hinges are shielded by door edges
• Hinged side of door has provisions to allow direct ushing of hinge
area
• 20-degree sloped top facilitates runo of water and cleaning
solutions and prohibits placement of objects on top of enclosure
• 170-degree door opening
• Door edges are sloped 20 degrees at top and bottom edges to
facilitate runo
• Slanted ange trough collar prohibits pooling of uids along the
top edge of the enclosure opening
• Heavy-duty three-point latching mechanism operated by a Type
316 stainless steel POWERGLIDE® padlocking handle on all doors
• Master door has POWERGLIDE handle with integral screwdriver
defeater
• Mechanical interlock activated by master door prevents slave
doors from being opened rst. Doors can be closed in any order.
• Master door is far right-hand door on all enclosures
• Seamless foam-in-place one-piece gasket provides an oil-tight,
water-tight and dust-tight seal against contaminants
• Bonding provision on doors; grounding stud on body
• Accessory mounting channel provided in enclosure top
• Heavy-duty lifting eyes are Type 316 stainless steel
• Removable centerpost permits easy panel installation
• Panel studs accept optional NEMA-size panels
• Preferred cutout on right ange provides mounting for most
disconnect operators
• Mounting holes in bottom of enclosure for direct mounting or for
optional sanitary legs or stainless steel oor stands
• Furnished hardware kit consists of panel mounting nuts,
grounding hardware and hole seals for bottom mounting holes
• Ends of latch rods have rollers for easier
Finish
Stainless steel enclosures are unpainted. External surfaces have a #4
brushed nish. Optional mild steel panels are painted white. Optional
conductive panels are available.
Accessories
See also Accessories.
Industrial Corrosion Inhibitors
Floor Stand Kit
Panels for Type 3R, 4, 4X, 12 and 13 Enclosures
Operator Adapters for Preferred Cutouts
Sanitary Leg Kits
An operator adapter for a preferred cutout must be ordered separately.
Bulletin: WS2D

377
Disconnect: Free-Stand Stainless Steel Preferred-Cutout Disconnect Enclosures
Homan WATERSHED® Stainless Steel
PH (763) 422-2211 • FX (763) 422-2600 • homanonline.com
Subject to change without notice © 2011 Pentair Technical Products
Standard Product
Catalog Number AxBxC in./mm
A1
in./mm
A2
in./mm
B
in./mm
C
in./mm Panel Conductive Panel
WS62XM5112SS 62.00 x 51.00 x 12.00
1575 x 1295 x 305
62.81
1595
67.20
1707
51.09
1298
12.12
308
A60P48 A60P48G
WS62XM5118SS 62.00 x 51.00 x 18.00
1575 x 1295 x 457
62.81
1595
67.20
1707
51.09
1298
18.12
460
A60P48 A60P48G
WS62XM6312SS 62.00 x 63.00 x 12.00
1575 x 1600 x 305
62.81
1595
67.20
1707
63.09
1602
12.12
305
A60P60 A60P60G
WS62XM6318SS 62.00 x 63.00 x 18.00
1575 x 1602 x 457
62.81
1595
67.20
1707
63.09
1602
18.12
460
A60P60 A60P60G
WS74XM6312SS 74.00 x 63.00 x 12.00
1880 x 1600 x 305
74.81
1900
79.20
2012
63.09
1602
12.12
305
A72P60 A72P60G
WS74XM6318SS 74.00 x 63.00 x 18.00
1880 x 1600 x 457
74.81
1900
81.38
2067
63.09
1602
18.12
460
A72P60 A72P60G
WS74XM7512SS 74.00 x 75.00 x 12.00
1880 x 1905 x 305
74.81
1900
79.20
2012
75.09
1907
12.12
305
A72P72 A72P72G
WS74XM7518SS 74.00 x 75.00 x 18.00
1880 x 1905 x 457
74.81
1900
81.38
2067
75.09
1907
18.12
460
A72P72 A72P72G
WS74XM7524SS 74.00 x 75.00 x 24.00
1880 x 1905 x 610
74.81
1900
83.57
2123
75.09
1907
24.12
613
A72P72 A72P72G
A x B x C are nominal dimensions.
Purchase panels separately.
All 24.12-in. (613-mm) and deeper enclosures using short connecting rods by the following manufacturers require a Homan platform assembly, catalog number ADSCPA, purchased separately. • ABB Controls ange-operated
devices • Cutler-Hammer C361 devices • Eaton Cutler-Hammer C371 mechanisms which use C371E, F, G, K operating mechanism (see next paragraph for option) • General Electric Type TDA devices (see next paragraph for
option) • Schneider Square D Class 9422 devices (see next paragraph for option)
The platform assembly can be omitted if long connecting rods are ordered in place of short connecting rods. • For Eaton Cutler-Hammer operating mechanisms C371E and C371F order catalog number C371CS1 connecting rod.
For C371G and C371K order catalog number C371CS2 connecting rod. • For General Electric devices, order catalog number TDSR extended length drive rod • For Schneider Square D devices, order catalog number 9422-R2 extra
long operating rod(s). Some devices require two rods. Consult factory for space occupied on panel when platform is used.

378
Disconnect: Free-Stand Stainless Steel Preferred-Cutout Disconnect Enclosures
Homan WATERSHED® Stainless Steel
PH (763) 422-2211 • FX (763) 422-2600 • homanonline.com
Subject to change without notice © 2011 Pentair Technical Products
Disconnect Mounting Space
Disconnects are located by dimension E1. Wiring space W1 is
available when disconnect is installed in the enclosure.
E1 = 8.62 in. (219 mm) when C = 8.00 in. (203 mm)
E1 = 11.62 in. (295 mm) when C = 12.00 in. (305 mm)
W1 = Wiring Space.
See Technical Information for wire bend space.
Refer to National Electrical Code ® 2005 article 430.10(B) for wiring
space required for line side conductors to be connected to
disconnect. Verify your application to determine if wiring space is
adequate.
Verify your application to determine if wiring space is adequate.

379
Disconnect: Free-Stand Stainless Steel Preferred-Cutout Disconnect Enclosures
Homan WATERSHED® Stainless Steel
PH (763) 422-2211 • FX (763) 422-2600 • homanonline.com
Subject to change without notice © 2011 Pentair Technical Products
Sanitary Leg Kits
Sanitary Leg Kits provide space
between the enclosure and the oor
for better washdown accessibility.
Available with xed or independently
adjustable legs. Adjustable leg
shown. Four legs per kit. Maintains
NEMA Type 4X rating when properly
installed on a Homan Type 4X
enclosure.
Bulletin: WSY
Catalog Number Description Size L (in.) Size L (mm)
WSASLKSS Adjustable Sanitary Leg Kit 11.50 -12.50 292 -318
WSFSLKSS Fixed Sanitary Leg Kit 12.00 305

380
Disconnect: Free-Stand Universal-Cutout Disconnect Enclosures
Free-Stand Universal-Cutout Disconnect Overview
PH (763) 422-2211 • FX (763) 422-2600 • homanonline.com
Subject to change without notice © 2011 Pentair Technical Products
Free-Stand Uni versal- Cutout Disc onnect Enc losures
Free-Stand Uni versal- Cutout Disc onnect Ove rview
Universal Cutout Overview
Application
The universal cutout is used in large freestand and oorstand
enclosures, i.e., Bulletins A21(S), A28(S) and A34. Operator Adapter
Kits are required in order to install the various manufacturers’
hardware. Note that 400 A (or greater) disconnect switches and
600 A (or greater) circuit breakers need to use the “Large” or “High
Amp” cutout, which is provided in the A21ABVA kit for Allen-Bradley
variable-depth disconnect switches or the A21ITE kit for Siemens (and
select other manufacturers) ex-cable devices. The “Large” or “High
Amp” cutout accepts the larger operating handle whose mounting
hole centers are 6.500-in. apart.
Universal cutouts are designed to house the following:
Allen-Bradley
• Bulletin 1494F ange-mount disconnect switches and Bulletin
1494D ange-mount operators for circuit breakers
• Bulletin 1494V disconnect switches with ange-mount variable-
depth operating mechanisms and Bulletin 1494V ange-mount
variable-depth operating mechanisms for circuit breakers
• Bulletin 140U exible cable operating mechanisms for 140U
molded case circuit breakers
• Bulletin 1494C cable-operated disconnect switches with ange-
mount handles
• Bulletin 194RC cable-operated ange-mount handles for use with
the NFPA 79 compliant 194R IEC rotary disconnect switches
Allen-Bradley Bulletin 1494V-R1, -R2 and -W2 operating handles and
Allen-Bradley Bulletin 1494F disconnect devices or Bulletin 1494D circuit
breaker operators will NOT t these enclosures.
ABB Controls ange-mount variable-depth operating mechanisms
for disconnect switches and circuit breakers. Also the cable version
for circuit breakers.
Eaton Cutler-Hammer Type C361 disconnect switches and operator
mechanisms, and Type C371 circuit breakers and circuit breaker
operating mechanisms. Also Type SM safety handle mechanisms and
FLEX SHAFT™ handle operators for circuit breakers.
General Electric Type STDA ange handles and variable-depth
operating mechanisms for disconnect switches and circuit breakers.
Also SPECTRAFLEX™ cable operators for circuit breakers.
Siemens ITE MAX FLEX® ange-mount variable-depth operating
handles for disconnect switches and circuit breakers.
Schneider Square D® disconnect switches and circuit breakers used
with Class 9422 ange-mount variable-depth operating mechanisms
or cable mechanisms.
These enclosures will NOT receive Class 9422 bracket-mount disconnect
devices, Class 9422TG1 or TG2 devices.
Disconnect Enclosures with Universal Cutout
Universal cutout requires an operator adapter for the brand and type
of disconnect being used. See Disconnect Enclosure Accessories to
select the operator adapter.
Ordering
The disconnect switch, operating handle and operating mechanism
must be ordered separately. See Technical Information in the
Homan Specier’s Guide for wire bend space available when various
manufacturers’ disconnect switches are installed, or Disconnect
Ordering Information at homanonline.com for disconnect ordering
guidelines and wire bend space available. Check the enclosure
dimension drawings to verify the chosen disconnect switch will t in
the enclosure.
All 24.12-in. (613-mm) and deeper enclosures using short
connecting rods by the following manufacturers require a Homan
platform assembly, catalog number ADSCPA, purchased separately.
• ABB Controls ange-operated devices
• Eaton Cutler-Hammer C361 devices
• Eaton Cutler-Hammer C371 mechanisms which use C371E, F, G, K
operating mechanism (see Disconnect Enclosure Accessories)
• General Electric Type TDA devices (see Disconnect Enclosure
Accessories)
• Schneider Square D® Class 9422 devices (see Disconnect Enclosure
Accessories)
The platform assembly can be omitted if long connecting rods are
ordered in place of short connecting rods.
• For Eaton Cutler-Hammer operating mechanisms C371E and C371F
order catalog number C371CS1 connecting rod. For C371G and
C371K order catalog number C371CS2 connecting rod.
• For General Electric devices, order catalog number TDSR extended
length drive rod
• For Schneider Square D devices, order catalog number 9422-R2
extra long operating rod(s). Some devices require two rods.
Consult factory for space occupied on panel when platform is used.

381
Disconnect: Free-Stand Universal-Cutout Disconnect Enclosures
Free-Stand Type 12 Disconnect Enclosures
PH (763) 422-2211 • FX (763) 422-2600 • homanonline.com
Subject to change without notice © 2011 Pentair Technical Products
Free-Stand Type 12 Disc onnect En closures
Two-Door with Floor Stands Disconnect Enclosure, Type 12
Industry Standards
UL 508A Listed; Type 12; File No. E61997
cUL Listed per CSA C22.2 No. 94; Type 12; File No. E61997
NEMA/EEMAC Type 12
CSA File No. 42186: Type 12
IEC 60529, IP55
Application
A disconnect can be installed on the centerpost or right side of this
enclosure. Floor stands provide additional height and access for
cleaning under the enclosure.
Specications
• 10 gauge steel
• Seams continuously welded and ground smooth
• Body stieners in larger enclosures for extra rigidity
• Body ange trough excludes liquids and contaminants
• Removable centerposts permit easy panel installation
• Heavy gauge continuous hinges
• Heavy-duty 3-point latching mechanism operated by padlocking
handle on all doors
• Rollers on ends of latch rods for easier door closing
• Heavy-duty lifting eyes anchor into reinforced top
• Data pocket is high impact thermoplastic
• 15-in. oor stands are welded to enclosure
• Provisions for mounting lights
• Oil-resistant door gasket
• Panel supports
• Collar studs provided for mounting optional panels
• Master door is right-hand door on X enclosures and left-hand door
on CPX enclosures
• Integral defeater on master door handle requires a screwdriver to
open
• Mechanical interlock operated by master door prevents slave door
from being opened rst. Doors can be closed in any order.
• Includes door hardware
Finish
White interior with ANSI 61 gray exterior nish over pretreated
surfaces. Optional panels have white or conductive nish.
Accessories
See also Accessories.
Blank Adapter Plates, Mild Steel
INTERSAFE® Data Interface Ports, Type 4/4X/12
Operator Adapters for Universal Cutouts
Panels for Type 3R, 4, 4X, 12 and 13 Enclosures
Steel and Stainless Steel Window Kits
Modication and Customization
Homan excels at modifying and customizing products to your
specications. Contact your local Homan sales oce or distributor
for complete information.
Bulletin: A21

382
Disconnect: Free-Stand Universal-Cutout Disconnect Enclosures
Free-Stand Type 12 Disconnect Enclosures
PH (763) 422-2211 • FX (763) 422-2600 • homanonline.com
Subject to change without notice © 2011 Pentair Technical Products
Standard Product Provision for Disconnect Operator on Right Flange
Catalog Number AxBxC in./mm Panel Conductive Panel
Panel Size D x E
in./mm
Stiener Position S
in./mm
A60X4912LPFTC 60.12 x 49.75 x 12.12
1527 x 1264 x 308
A60P48 A60P48G 56.00 x 44.00
1422 x 1118
None
None
A60X6112LPFTC 60.12 x 61.75 x 12.12
1527 x 1568 x 308
A60P60 A60P60G 56.00 x 56.00
1422 x 1422
21.00
533
A72X6112LPFTC 72.12 x 61.75 x 12.12
1832 x 1568 x 308
A72P60 A72P60G 68.00 x 56.00
1727 x 1422
21.00
533
A72X7312LPFTC 72.12 x 73.75 x 12.12
1832 x 1873 x 308
A72P72 A72P72G 68.00 x 68.00
1727 x 1727
24.00
610
A60X4918LPFTC 60.12 x 49.75 x 18.12
1527 x 1264 x 460
A60P48 A60P48G 56.00 x 44.00
1422 x 1118
None
None
A60X6118LPFTC 60.12 x 61.75 x 18.12
1527 x 1568 x 460
A60P60 A60P60G 56.00 x 56.00
1422 x 1422
21.00
533
A72X6118LPFTC 72.12 x 61.75 x 18.12
1832 x 1568 x 460
A72P60 A72P60G 68.00 x 56.00
1727 x 1422
21.00
533
A72X7318LPFTC 72.12 x 73.75 x 18.12
1832 x 1873 x 460
A72P72 A72P72G 68.00 x 68.00
1727 x 1727
24.00
610
A60X4924LPFTC 60.12 x 49.75 x 24.12
1527 x 1264 x 613
A60P48 A60P48G 56.00 x 44.00
1422 x 1118
None
None
A60X6124LPFTC 60.12 x 61.75 x 24.12
1527 x 1568 x 613
A60P60 A60P60G 56.00 x 56.00
1422 x 1422
21.00
533
A72X7324LPFTC 72.12 x 73.75 x 24.12
1832 x 1873 x 613
A72P72 A72P72G 68.00 x 68.00
1727 x 1727
24.00
610
Purchase panels separately.
All 24.12-in. (613-mm) and deeper enclosures using short connecting rods in the following models require a Homan platform assembly, catalog number ADSCLPA, purchased separately. • ABB Controls ange-operated
devices • Eaton Cutler-Hammer C361 devices • Eaton Cutler-Hammer C371 mechanisms which use C371E, F, G, K operating mechanism (see footnote below) • General Electric Type TDA devices (see footnote below) • Schneider
Square D Class 9422 devices (see footnote below)
The platform assembly can be omitted if long connecting rods are ordered in place of short connecting rods. • For Eaton Cutler-Hammer operating mechanisms C371E and C371F order catalog number C371CS1 connecting rod.
For C371G and C371K order catalog number C371CS2 connecting rod. • For General Electric devices, order catalog number TDSR extended length drive rod • For Schneider Square D devices, order catalog number 9422-R2 extra
long operating rod(s). Some devices require two rods.

383
Disconnect: Free-Stand Universal-Cutout Disconnect Enclosures
Free-Stand Type 12 Disconnect Enclosures
PH (763) 422-2211 • FX (763) 422-2600 • homanonline.com
Subject to change without notice © 2011 Pentair Technical Products

384
Disconnect: Free-Stand Universal-Cutout Disconnect Enclosures
Free-Stand Type 12 Disconnect Enclosures
PH (763) 422-2211 • FX (763) 422-2600 • homanonline.com
Subject to change without notice © 2011 Pentair Technical Products
Standard Product Provision for Disconnect Operator on Centerpost
Catalog Number AxBxC in./mm Panel Conductive Panel
Panel Size D x E
in./mm
Stiener Position S
in./mm
A60CPX4812LPFTC 60.12 x 48.50 x 12.12
1527 x 1232 x 308
A60P48 A60P48G 56.00 x 44.00
1422 x 1118
None
None
A60CPX6012LPFTC 60.12 x 60.50 x 12.12
1527 x 1537 x 308
A60P60 A60P60G 56.00 x 56.00
1422 x 1422
21.00
533
A72CPX7212LPFTC 72.12 x 72.50 x 12.12
1832 x 1841 x 308
A72P72 A72P72G 68.00 x 68.00
1727 x 1727
24.00
610
A72CPX7218LPFTC 72.12 x 72.50 x 18.12
1832 x 1841 x 460
A72P72 A72P72G 68.00 x 68.00
1727 x 1727
24.00
610
Purchase panels separately.
The platform assembly can be omitted if long connecting rods are ordered in place of short connecting rods. • For Cutler-Hammer operating mechanisms C371E and C371F order catalog number C371CS1 connecting rod. For
C371G and C371K order catalog number C371CS2 connecting rod. • For General Electric devices, order catalog number TDSR extended length drive rod • For Square D devices, order catalog number 9422-R2 extra long operating
rod(s). Some devices require two rods.

385
Disconnect: Free-Stand Universal-Cutout Disconnect Enclosures
Free-Stand Type 12 Disconnect Enclosures
PH (763) 422-2211 • FX (763) 422-2600 • homanonline.com
Subject to change without notice © 2011 Pentair Technical Products
Disconnect Mounting Space
Disconnects are located by dimension E1. Wiring space W1 is available when disconnect is installed in the enclosure. See Technical
Information chapter for E1 Spacing by Enclosure Height for various disconnect switch manufacturers.
W1 = Wiring Space
See Technical Information chapter for wire bend space.
Refer to NATIONAL ELECTRICAL CODE, 2005 article 430-10(b) for wiring space required for line side conductors to be connected to
disconnect. Verify your application to determine whether wiring space is adequate.
Consult Space Occupied by Disconnect drawing to determine whether the disconnect device you are using will t the enclosure size you have selected.

386
Disconnect: Free-Stand Universal-Cutout Disconnect Enclosures
Free-Stand Type 12 Disconnect Enclosures
PH (763) 422-2211 • FX (763) 422-2600 • homanonline.com
Subject to change without notice © 2011 Pentair Technical Products
Heavy-Duty Free-Stand Disconnect Enclosure, Type 12
Industry Standards
UL 508A Listed; Type 12; File No. E61997
cUL Listed per CSA C22.2 No. 94; Type 12; File No. E61997
NEMA/EEMAC Type 12
CSA File No. 42186: Type 12
IEC 60529, IP55
Application
Simple, heavy-duty and cost-eective, this disconnect enclosure can
be ordered with one to six doors to t a range of applications.
Specications
• 10 gauge steel
• Seams continuously welded and ground smooth
• Body stieners in larger enclosures for extra rigidity
• Body ange trough excludes liquids and contaminants
• Heavy-duty lifting eyes anchor into reinforced top
• Removable centerposts permit easy panel installation
• Heavy gauge continuous hinges
• Heavy-duty 3-point latching mechanism operated by padlocking
handle on all doors
• Ends of latch rods have rollers for easier door closing
• Panel supports
• Data pocket is high-impact thermoplastic
• Oil-resistant gasket
• Master door is far right-hand door on all enclosures
• Defeater on primary door requires a screwdriver to open
• Mechanical interlock activated by master door prevents slave
doors from being opened rst. Doors can be closed in any order.
• Universal cutout on right ange provides mounting for most
disconnect operators by using operator adapters
• Models available with panel included or panel sold separately
• FTC models include removable painted 10 gauge steel panels
which mount on collar studs
• Includes door hardware
Finish
White inside with ANSI 61 gray outside nish over pretreated
surfaces. Panels have white or conductive nish.
Accessories
See also Accessories.
Blank Adapter Plates, Mild Steel
Blower Fan Package
Floor Stand Kit
Operator Adapters for Universal Cutouts
Panels for Type 3R, 4, 4X, 12 and 13 Enclosures
Modication and Customization
Homan excels at modifying and customizing products to your
specications. Contact your local Homan sales oce or distributor
for complete information.
Bulletin: A28M1, A28M2, A28MM
Standard Product One-Door Enclosures
Catalog Number AxBxC in./mm With or Without Panel Painted Panel Conductive Panel
Panel Size
in./mm
A72XM2818FTC 72.12 x 28.25 x 18.12
1832 x 718 x 460
With A72PM28 A72PM28G 60.00 x 21.75
1524 x 552
A72XM2818FTCLP 72.12 x 28.25 x 18.12
1832 x 718 x 460
Without — — —
—
A72XM3418FTC 72.12 x 34.25 x 18.12
1832 x 870 x 460
With A72PM34 A72PM34G 60.00 x 27.75
1524 x 705
A72XM3418FTCLP 72.12 x 34.25 x 18.12
1832 x 870 x 460
Without — — —
—
A72XM4018FTC 72.12 x 40.25 x 18.12
1832 x 1022 x 460
With A72PM40 A72PM40G 60.00 x 33.75
1524 x 857
A72XM4018FTCLP 72.12 x 40.25 x 18.12
1832 x 1022 x 460
Without — — —
—
A84XM4018FTC 84.12 x 40.25 x 18.12
2137 x 1022 x 460
With A84PM40 A84PM40G 72.00 x 33.75
1829 x 857
A84XM4018FTCLP 84.12 x 40.25 x 18.12
2137 x 1022 x 460
Without — — —
—
A90XM4018FTC 90.12 x 40.25 x 18.12
2289 x 1022 x 460
With A90PM40 A90PM40G 78.00 x 33.75
1981 x 857
A90XM4018FTCLP 90.12 x 40.25 x 18.12
2289 x 1022 x 460
Without — — —
—
A90XM4020FTC 90.12 x 40.25 x 20.12
2289 x 1022 x 511
With A90PM40 A90PM40G 78.00 x 33.75
1981 x 857

387
Disconnect: Free-Stand Universal-Cutout Disconnect Enclosures
Free-Stand Type 12 Disconnect Enclosures
PH (763) 422-2211 • FX (763) 422-2600 • homanonline.com
Subject to change without notice © 2011 Pentair Technical Products
Catalog Number AxBxC in./mm With or Without Panel Painted Panel Conductive Panel
Panel Size
in./mm
A90XM4020FTCLP 90.12 x 40.25 x 20.12
2289 x 1022 x 511
Without — — —
—
A84XM4024FTC 84.12 x 40.25 x 24.12
2137 x 1022 x 613
With A84PM40 A84PM40G 72.00 x 33.75
1829 x 857
A84XM4024FTCLP 84.12 x 40.25 x 24.12
2137 x 1022 x 613
Without — — —
—
A90XM4024FTC 90.12 x 40.25 x 24.12
2289 x 1022 x 613
With A90PM40 A90PM40G 78.00 x 33.75
1981 x 857
A90XM4024FTCLP 90.12 x 40.25 x 24.12
2289 x 1022 x 613
Without — — —
—
All 24.12-in. (613-mm) and deeper enclosures using short connecting rods in the following models require a Homan platform assembly, catalog number ADSCPA, purchased separately. • ABB Controls ange-operated devices
• Cutler-Hammer C361 devices • Cutler-Hammer C371 mechanisms which use C371E, F, G, K operating mechanism • General Electric Type TDA devices (see next paragraph for option) • Square D Class 9422 devices (see next
paragraph for option)
The platform assembly can be omitted if long connecting rods are ordered in place of short connecting rods. • For Cutler-Hammer operating mechanisms C371E and C371F order catalog number C371CS1 connecting rod. For
C371G and C371K order catalog number C371CS2. • For General Electric devices, order catalog number TDSR extended length drive rod • For Square D devices, order catalog number 9422-R2 extra long operating rod(s). Some
devices require two rods. Consult factory for space occupied on panel when platform is used.
Enclosures with panel include a painted panel. Order conductive panels separately.

388
Disconnect: Free-Stand Universal-Cutout Disconnect Enclosures
Free-Stand Type 12 Disconnect Enclosures
PH (763) 422-2211 • FX (763) 422-2600 • homanonline.com
Subject to change without notice © 2011 Pentair Technical Products
Standard Product Two-Door Enclosures
Catalog Number AxBxC in./mm With or Without Panel
Stiener Locations
in./mm Painted Panel Conductive Panel
Panel Size
in./mm
A72XM5418FTC 72.12 x 54.50 x 18.12
1832 x 1384 x 460
With None
None
A72PM54 A72PM54G 60.00 x 48.00
1524 x 1219
A72XM5418FTCLP 72.12 x 54.50 x 18.12
1832 x 1384 x 460
Without None
None
— — —
—
A72XM6618FTC 72.12 x 66.50 x 18.12
1832 x 1689 x 460
With 21.00
533
A72PM66 A72PM66G 60.00 x 60.00
1524 x 1524
A72XM6618FTCLP 72.12 x 66.50 x 18.12
1832 x 1689 x 460
Without 21.00
533
— — —
—
A72XM7818FTC 72.12 x 78.50 x 18.12
1832 x 1994 x 460
With 24.00
610
A72PM78 A72PM78G 60.00 x 72.00
1524 x 1829
A72XM7818FTCLP 72.12 x 78.50 x 18.12
1832 x 1994 x 460
Without 24.00
610
— — —
—
A84XM7818FTC 84.12 x 78.50 x 18.12
2137 x 1994 x 460
With 24.00
610
A84PM78 A84PM78G 72.00 x 72.00
1829 x 1829
A84XM7818FTCLP 84.12 x 78.50 x 18.12
2137 x 1994 x 460
Without 24.00
610
— — —
—
A90XM7818FTC 90.12 x 78.50 x 18.12
2289 x 1994 x 460
With 24.00
610
A90PM78 A90PM78G 78.00 x 72.00
1981 x 1829
A90XM7818FTCLP 90.12 x 78.50 x 18.12
2289 x 1994 x 460
Without 24.00
610
— — —
—
A90XM7820FTC 90.12 x 78.50 x 20.12
2289 x 1994 x 511
With 24.00
610
A90PM78 A90PM78G 78.00 x 72.00
1981 x 1829
A90XM7820FTCLP 90.12 x 78.50 x 20.12
2289 x 1994 x 511
Without 24.00
610
— — —
—
A72XM7824FTC 72.12 x 78.50 x 24.12
1832 x 1994 x 613
With 24.00
610
A72PM78 A72PM78G 60.00 x 72.00
1524 x 1829
A72XM7824FTCLP 72.12 x 78.50 x 24.12
1832 x 1994 x 613
Without 24.00
610
— — —
—
A84XM7824FTC 84.12 x 78.50 x 24.12
2137 x 1994 x 613
With 24.00
610
A84PM78 A84PM78G 72.00 x 72.00
1829 x 1829
A84XM7824FTCLP 84.12 x 78.50 x 24.12
2137 x 1994 x 613
Without 24.00
610
— — —
—
A90XM7824FTC 90.12 x 78.50 x 24.12
2289 x 1994 x 613
With 24.00
610
A90PM78 A90PM78G 78.00 x 72.00
1981 x 1829
A90XM7824FTCLP 90.12 x 78.50 x 24.12
2289 x 1994 x 613
Without 24.00
610
— — —
—
Enclosures with panel include a painted panel. Order conductive panels separately.
Standard Product Three-Door Enclosures
Catalog Number AxBxC in./mm
With or
Without
Panel
Large
Painted
Panel
Large
Conductive
Panel
No. of
Large
Panels
Large
Panel
Size
in./mm
Small
Painted
Panel
Small
Conductive
Panel
No. of
Small
Panels
Small
Panel
Size
in./mm
A72XM3EQ18FTC 72.12 x 100.75 x 18.12
1832 x 2559 x 460
With A72PM66 A72PM66G 1 60.00 x 60.00
1524 x 1524
A72PM34 A72PM34G 1 60.00 x 27.75
1524 x 705
A72XM3EQ18FTCLP 72.12 x 100.75 x 18.12
1832 x 2559 x 460
Without — — — —
—
— — — —
—
A72XM3EW18FTC 72.12 x 118.75 x 18.12
1832 x 3017 x 460
With A72PM78 A72PM78G 1 60.00 x 72.00
1524 x 1829
A72PM40 A72PM40G 1 60.00 x 33.75
1524 x 857
A72XM3EW18FTCLP 72.12 x 118.75 x 18.12
1832 x 3017 x 460
Without — — — —
—
— — — —
—
A84XM3EW18FTC 84.12 x 118.75 x 18.12
2137 x 3017 x 460
With A84PM78 A84PM78G 1 72.00 x 72.00
1829 x 1829
A84PM40 A84PM40G 1 72.00 x 33.75
1829 x 857
A84XM3EW18FTCLP 84.12 x 118.75 x 18.12
2137 x 3017 x 460
Without — — — —
—
— — — —
—
A84XM3EW24FTC 84.12 x 118.75 x 24.12
2137 x 3017 x 613
With A84PM78 A84PM78G 1 72.00 x 72.00
1829 x 1829
A84PM40 A84PM40G 1 72.00 x 33.75
1829 x 857
A84XM3EW24FTCLP 84.12 x 118.75 x 24.12
2137 x 3017 x 613
Without — — — —
—
— — — —
—
A90XM3EW24FTC 90.12 x 118.75 x 24.12
2289 x 3017 x 613
With A90PM78 A90PM78G 1 78.00 x 72.00
1981 x 1829
A90PM40 A90PM40G 1 78.00 x 33.75
1981 x 857
A90XM3EW24FTCLP 90.12 x 118.75 x 24.12
2289 x 3017 x 613
Without — — — —
—
— — — —
—
Enclosures with panel include a painted panel. Order conductive panels separately.

389
Disconnect: Free-Stand Universal-Cutout Disconnect Enclosures
Free-Stand Type 12 Disconnect Enclosures
PH (763) 422-2211 • FX (763) 422-2600 • homanonline.com
Subject to change without notice © 2011 Pentair Technical Products
Standard Product Four-Door Enclosures
Catalog Number AxBxC in./mm With or Without Panel Large Painted Panel
Conductive
Large Panel
Number of
Large Panels
Size of Large Panels
in./mm
A84XM4EW18FTC 84.12 x 158.00 x 18.12
2137 x 4013 x 460
With A84PM78 A84PM78G 2 72.00 x 72.00
1829 x 1829
A84XM4EW18FTCLP 84.12 x 158.00 x 18.12
2137 x 4013 x 460
Without — — — —
—
A90XM4EW18FTC 90.12 x 158.00 x 18.12
2289 x 4013 x 460
With A90PM78 A90PM78G 2 78.00 x 72.00
1981 x 1829
A90XM4EW18FTCLP 90.12 x 158.00 x 18.12
2289 x 4013 x 460
Without — — — —
—
A84XM4EW24FTC 84.12 x 158.00 x 24.12
2137 x 4013 x 613
With A84PM78 A84PM78G 2 72.00 x 72.00
1829 x 1829
A84XM4EW24FTCLP 84.12 x 158.00 x 24.12
2137 x 4013 x 613
Without — — — —
—
A90XM4EW24FTC 90.12 x 158.00 x 24.12
2289 x 4013 x 613
With A90PM78 A90PM78G 2 78.00 x 72.00
1981 x 1829
A90XM4EW24FTCLP 90.12 x 158.00 x 24.12
2289 x 4013 x 613
Without — — — —
—
Enclosures with panel include a painted panel. Order conductive panels separately.
Standard Product Five-Door Enclosures
Catalog Number AxBxC in./mm
With or
Without
Panel
Large
Painted
Panel
Conductive
Large
Panel
No. of
Large
Panels
Large
Panel
Size
in./mm
Small
Painted
Panel
Conductive
Small
Panel
No. of
Small
Panels
Small
Panel
Size
in./mm
A84XM5EW18FTC 84.12 x 197.75 x 18.12
2137 x 5023 x 460
With A84PM78 A84PM78G 2 72.00 x 72.00
1829 x 1829
A84PM40 A84PM40G 1 72.00 x 33.75
1829 x 857
A84XM5EW18FTCLP 84.12 x 197.75 x 18.12
2137 x 5023 x 460
Without — — — —
—
— — — —
—
A90XM5EW18FTC 90.12 x 197.75 x 18.12
2289 x 5023 x 460
With A90PM78 A90PM78G 2 78.00 x 72.00
1981 x 1829
A90PM40 A90PM40G 1 78.00 x 33.75
1981 x 857
A90XM5EW18FTCLP 90.12 x 197.75 x 18.12
2289 x 5023 x 460
Without — — — —
—
— — — —
—
A84XM5EW24FTC 84.12 x 197.75 x 24.12
2137 x 5023 x 613
With A84PM78 A84PM78G 2 72.00 x 72.00
1829 x 1829
A84PM40 A84PM40G 1 72.00 x 33.75
1829 x 857
A84XM5EW24FTCLP 84.12 x 197.75 x 24.12
2137 x 5023 x 613
Without — — — —
—
— — — —
—
A90XM5EW24FTC 90.12 x 197.75 x 24.12
2289 x 5023 x 613
With A90PM78 A90PM78G 2 78.00 x 72.00
1981 x 1829
A90PM40 A90PM40G 1 78.00 x 33.75
1981 x 857
A90XM5EW24FTCLP 90.12 x 197.75 x 24.12
2289 x 5023 x 613
Without — — — —
—
— — — —
—
Enclosures with panel include a painted panel. Order conductive panels separately.
Standard Product Six-Door Enclosures
Catalog Number AxBxC in./mm With or Without Panel Large Painted Panel
Conductive
Large Panel
Number of
Large Panels
Size of Large Panels
in./mm
A84XM6EW24FTC 84.12 x 236.00 x 24.12
2137 x 5994 x 613
With A84PM78 A84PM78G 3 72.00 x 72.00
1829 x 1829
A84XM6EW24FTCLP 84.12 x 236.00 x 24.12
2137 x 5994 x 613
Without — — — —
—
A90XM6EW24FTC 90.12 x 236.00 x 24.12
2289 x 5994 x 613
With A90PM78 A90PM78G 3 78.00 x 72.00
1981 x 1829
A90XM6EW24FTCLP 90.12 x 236.00 x 24.12
2289 x 5994 x 613
Without — — — —
—
Enclosures with panel include a painted panel. Order conductive panels separately.

390
Disconnect: Free-Stand Universal-Cutout Disconnect Enclosures
Free-Stand Type 12 Disconnect Enclosures
PH (763) 422-2211 • FX (763) 422-2600 • homanonline.com
Subject to change without notice © 2011 Pentair Technical Products

391
Disconnect: Free-Stand Universal-Cutout Disconnect Enclosures
Free-Stand Type 12 Disconnect Enclosures
PH (763) 422-2211 • FX (763) 422-2600 • homanonline.com
Subject to change without notice © 2011 Pentair Technical Products

392
Disconnect: Free-Stand Universal-Cutout Disconnect Enclosures
Free-Stand Type 12 Disconnect Enclosures
PH (763) 422-2211 • FX (763) 422-2600 • homanonline.com
Subject to change without notice © 2011 Pentair Technical Products

393
Disconnect: Free-Stand Universal-Cutout Disconnect Enclosures
Free-Stand Type 12 Disconnect Enclosures
PH (763) 422-2211 • FX (763) 422-2600 • homanonline.com
Subject to change without notice © 2011 Pentair Technical Products

394
Disconnect: Free-Stand Universal-Cutout Disconnect Enclosures
Free-Stand Type 12 Disconnect Enclosures
PH (763) 422-2211 • FX (763) 422-2600 • homanonline.com
Subject to change without notice © 2011 Pentair Technical Products

395
Disconnect: Free-Stand Universal-Cutout Disconnect Enclosures
Free-Stand Type 12 Disconnect Enclosures
PH (763) 422-2211 • FX (763) 422-2600 • homanonline.com
Subject to change without notice © 2011 Pentair Technical Products

396
Disconnect: Free-Stand Universal-Cutout Disconnect Enclosures
Free-Stand Type 12 Disconnect Enclosures
PH (763) 422-2211 • FX (763) 422-2600 • homanonline.com
Subject to change without notice © 2011 Pentair Technical Products
Disconnect Mounting Space
Disconnects are located by dimension E1. Wiring space W1 is
available when disconnect is installed in the enclosure. See Technical
Information chapter for E1 Spacing by Enclosure Height for various
disconnect switch manufacturers.
W1 = Wiring Space
See Technical Information chapter for wire bend space.
Refer to NATIONAL ELECTRICAL CODE, 2005 article 430-10(b) for
wiring space required for line side conductors to be connected to
disconnect. Verify your application to determine whether wiring
space is adequate.
Consult Space Occupied by Disconnect drawing to determine whether
the disconnect device you are using will t the enclosure size you have
selected.

397
Disconnect: Free-Stand Universal-Cutout Disconnect Enclosures
Free-Stand Type 12 Disconnect Enclosures
PH (763) 422-2211 • FX (763) 422-2600 • homanonline.com
Subject to change without notice © 2011 Pentair Technical Products
Notes

398
Disconnect: Free-Stand Universal-Cutout Disconnect Enclosures
Type 12 Modular Free-Stand Disconnect Enclosures and Accessories
PH (763) 422-2211 • FX (763) 422-2600 • homanonline.com
Subject to change without notice © 2011 Pentair Technical Products
Type 12 Modular Free-S tand Disco nnect Encl osures and A ccessori es
Modular Disconnect Enclosure, Type 12
Industry Standards
UL 508A Listed; Type 12; File No. E61997
cUL Listed per CSA C22.2 No. 94; Type 12; File No. E61997
NEMA Type 12
CSA File No. 42186: Type 12
IEC 60529, IP55
Application
Modular disconnect enclosures provide conguration exibility and
versatility. One- and two-door models can be bolted together in any
conguration. Slave enclosures can be added or removed as required.
Features
One-Door Disconnect Enclosure (left side open): Universal cutout
on right ange provides mounting for most disconnect operators
by using operator adapters. Right side is closed since disconnect
operator cannot be obscured by a door. Master door is hinged on left.
Defeater on master door requires a screwdriver to open. Master door
activates mechanical interlock which prevents slave doors from being
opened rst. Doors may be closed in any order. Interlock is furnished.
Two-Door Disconnect Enclosure (left side open): Universal cutout
on right ange provides mounting for most disconnect operators
by using operator adapters. Right side is closed. Master door is
right-hand door. Both doors hinged on left. Defeater on master door
requires a screwdriver to open. Master door activates mechanical
interlock which prevents slave doors from being opened rst. Doors
may be closed in any order. Removable centerpost permits easy
panel installation. Interlock is furnished.
One-Door Slave Enclosure (both sides open): Door hinged on left.
Interlock is furnished.
Two-Door Slave Enclosure (both sides open): Right-hand door
hinged on right and left-hand door hinged on left. Removable
centerpost permits easy panel installation. Interlock is furnished.
Specications
• 10 gauge steel
• Seams are continuously welded and ground smooth
• Body stieners in larger enclosures for extra rigidity
• Body ange trough excludes liquids and contaminants
• Heavy-duty lifting eyes anchor into reinforced top
• Heavy gauge lift-o hinges
• Heavy-duty 3-point latching mechanism operated by padlocking
handle on all doors
• Rollers on ends of latch rods for easier door closing
• Data pocket is high-impact thermoplastic
• Oil-resistant door gasket
• Panel supports
• Removable 10 gauge steel panels mount on collar studs
• Bonding provision on door
• Mechanical interlock standard on each enclosure. Parts required
to connect interlock system between adjacent enclosures are
provided.
• Interlock rods are furnished with enclosures. Gasket kits and end
plate purchased separately.
• Models available with panel include painted panel; conductive
panel sold separately
Finish
ANSI 61 gray nish inside and outside over pretreated surfaces. Panels
have white or conductive nish. Flat end plates are ANSI 61 gray
inside and outside.
Accessories
See also Accessories.
Blank Adapter Plates, Mild Steel
End Plates
PANELITE™ Enclosure Lights Overview
Operator Adapters for Universal Cutouts
Panels for Type 3R, 4, 4X, 12 and 13 Enclosures
Center Panel Supports
Modication and Customization
Homan excels at modifying and customizing products to your
specications. Contact your local Homan sales oce or distributor
for complete information.
Bulletin: A34

399
Disconnect: Free-Stand Universal-Cutout Disconnect Enclosures
Type 12 Modular Free-Stand Disconnect Enclosures and Accessories
PH (763) 422-2211 • FX (763) 422-2600 • homanonline.com
Subject to change without notice © 2011 Pentair Technical Products
Standard Product Master Modular Type 12 Enclosures for Flange-Mount Disconnects, One-Door (left side open)
Catalog Number AxBxC in./mm With or Without Panel Panel Conductive Panel
Panel Size D x E
in./mm
AMOD72X4018FTC 72.12 x 40.25 x 18.12
1832 x 1020 x 460
With A72PM40 A72PM40G 60.00 x 33.75
1524 x 857
AMOD72X4018FTCLP 72.12 x 40.25 x 18.12
1832 x 1020 x 460
Without — — —
—
AMOD84X4018FTC 84.12 x 40.25 x 18.12
2137 x 1020 x 460
With A84PM40 A84PM40G 72.00 x 33.75
1829 x 857
AMOD84X4018FTCLP 84.12 x 40.25 x 18.12
2137 x 1020 x 460
Without — — —
—
AMOD84X4024FTC 84.12 x 40.25 x 24.12
2137 x 1020 x 613
With A84PM40 A84PM40G 72.00 x 33.75
1829 x 857
AMOD84X4024FTCLP 84.12 x 40.25 x 24.12
2137 x 1020 x 613
Without — — —
—
All 24.12-in. (613-mm) and deeper enclosures using short connecting rods in the following models require a Homan platform assembly, catalog number ADSCPA, purchased separately. • ABB Controls ange-operated devices
• Cutler-Hammer C361 devices • Cutler-Hammer C371 mechanisms which use C371E, F, G, K operating mechanism • General Electric Type TDA devices (see next paragraph for option) • Square D Class 9422 devices (see next
paragraph for option)
The platform assembly can be omitted if long connecting rods are ordered in place of short connecting rods. • For Cutler-Hammer operating mechanisms C371E and C371F order catalog number C371CS1 connecting rod. For
C371G and C371K order catalog number C371CS2. • For General Electric devices, order catalog number TDSR extended length drive rod • For Square D devices, order catalog number 9422-R2 extra long operating rod(s). Some
devices require two rods. Consult factory for space occupied on panel when platform is used.
Enclosures with panel include a painted panel. Order conductive panels separately.

400
Disconnect: Free-Stand Universal-Cutout Disconnect Enclosures
Type 12 Modular Free-Stand Disconnect Enclosures and Accessories
PH (763) 422-2211 • FX (763) 422-2600 • homanonline.com
Subject to change without notice © 2011 Pentair Technical Products
Standard Product Master Modular Type 12 Enclosures for Flange-Mount Disconnects, Two-Door (left side open)
Catalog Number AxBxC in./mm With or Without Panel Panel Conductive Panel
Panel Size D x E
in./mm
AMOD72X7818FTC 72.12 x 78.50 x 18.12
1832 x 1994 x 460
With A72PM78 A72PM78G 60.00 x 72.00
1524 x 1829
AMOD72X7818FTCLP 72.12 x 78.50 x 18.12
1832 x 1994 x 460
Without — — —
—
AMOD84X7818FTC 84.12 x 78.50 x 18.12
2137 x 1994 x 460
With A84PM78 A84PM78G 72.00 x 72.00
1829 x 1829
AMOD84X7818FTCLP 84.12 x 78.50 x 18.12
2137 x 1994 x 460
Without — — —
—
AMOD84X7824FTC 84.12 x 78.50 x 24.12
2137 x 1994 x 613
With A84PM78 A84PM78G 72.00 x 72.00
1829 x 1829
AMOD84X7824FTCLP 84.12 x 78.50 x 24.12
2137 x 1994 x 613
Without — — —
—
Enclosures with panel include a painted panel. Order conductive panels separately.

401
Disconnect: Free-Stand Universal-Cutout Disconnect Enclosures
Type 12 Modular Free-Stand Disconnect Enclosures and Accessories
PH (763) 422-2211 • FX (763) 422-2600 • homanonline.com
Subject to change without notice © 2011 Pentair Technical Products
Standard Product Slave Modular Type 12 Enclosures for Flange-Mount Disconnects, One-Door (both sides open)
Catalog Number AxBxC in./mm With or Without Panel Panel Conductive Panel
Panel Size D x E
in./mm
AMOD723918FTC 72.12 x 39.75 x 18.12
1832 x 1010 x 460
With A72PM40 A72PM40G 60.00 x 33.75
1524 x 857
AMOD723918FTCLP 72.12 x 39.75 x 18.12
1832 x 1010 x 460
Without — — —
—
AMOD843918FTC 84.12 x 39.75 x 18.12
2137 x 1010 x 460
With A84PM40 A84PM40G 72.00 x 33.75
1829 x 857
AMOD843918FTCLP 84.12 x 39.75 x 18.12
2137 x 1010 x 460
Without — — —
—
AMOD843924FTC 84.12 x 39.75 x 24.12
2137 x 1010 x 613
With A84PM40 A84PM40G 72.00 x 33.75
1829 x 857
AMOD843924FTCLP 84.12 x 39.75 x 24.12
2137 x 1010 x 613
Without — — —
—
Enclosures with panel include a painted panel. Order conductive panels separately.

402
Disconnect: Free-Stand Universal-Cutout Disconnect Enclosures
Type 12 Modular Free-Stand Disconnect Enclosures and Accessories
PH (763) 422-2211 • FX (763) 422-2600 • homanonline.com
Subject to change without notice © 2011 Pentair Technical Products
Standard Product Slave Modular Type 12 Enclosures for Flange-Mount Disconnects, Two-Door (both sides open)
Catalog Number AxBxC in./mm With or Without Panel Panel Conductive Panel
Panel Size D x E
in./mm
AMOD727718FTC 72.12 x 78.00 x 18.12
1832 x 1981 x 460
With A72PM78 A72PM78G 60.00 x 72.00
1524 x 1829
AMOD727718FTCLP 72.12 x 78.06 x 18.12
1832 x 1981 x 460
Without — — —
—
AMOD847718FTC 84.12 x 78.00 x 18.12
2137 x 1981 x 460
With A84PM78 A84PM78G 72.00 x 72.00
1829 x 1829
AMOD847718FTCLP 84.12 x 78.00 x 18.12
2137 x 1981 x 460
Without — — —
—
AMOD847724FTC 84.12 x 78.00 x 24.12
2137 x 1981 x 613
With A84PM78 A84PM78G 72.00 x 72.00
1829 x 1829
AMOD847724FTCLP 84.12 x 78.00 x 24.12
2137 x 1981 x 613
Without — — —
—
Enclosures with panel include a painted panel. Order conductive panels separately.

403
Disconnect: Free-Stand Universal-Cutout Disconnect Enclosures
Type 12 Modular Free-Stand Disconnect Enclosures and Accessories
PH (763) 422-2211 • FX (763) 422-2600 • homanonline.com
Subject to change without notice © 2011 Pentair Technical Products
Disconnect Mounting Space
Disconnects are located by dimension E1. Wiring space W1 is
available when disconnect is installed in the enclosure. See Technical
Information section for E1 Spacing by Enclosure Height for various
disconnect switch manufacturers.
W1 = Wiring Space.
See Technical Information section for wire bend space.
Refer to NATIONAL ELECTRICAL CODE®, 2005 article 430-10(b) for
wiring space required for line side conductors to be connected to
disconnect. Verify your application to determine whether wiring
space is adequate.
Consult Space Occupied by Disconnect drawing to determine whether
the disconnect device you are using will t the enclosure size you have
selected.

404
Disconnect: Free-Stand Universal-Cutout Disconnect Enclosures
Type 12 Modular Free-Stand Disconnect Enclosures and Accessories
PH (763) 422-2211 • FX (763) 422-2600 • homanonline.com
Subject to change without notice © 2011 Pentair Technical Products
End Plates
Used to seal open end(s) of an assembly of modular enclosures.
The 2.50-in. deep End Plates allow extra wiring space. Gasket and
mounting bolts are included.
Bulletin: A34Y
Catalog Number AxC in./mm
AMOD72EPT 72.12 x 18.12
1832 x 460
AMOD84EPT 84.12 x 18.12
2137 x 460
AMOD8424EPT 84.12 x 24.12
2137 x 613
Flat End Plates
Used to seal open end(s) of an assembly of modular enclosures.
The Flat End Plate provides a low prole cover for the open end of
a modular enclosure. Studs welded to the end plate eliminate bolt
holes. Gasket and mounting hardware are furnished.
Bulletin: A34Y
Catalog Number AxC in./mm
AMOD7218FEP 72.12 x 18.12
1832 x 460
AMOD8418FEP 84.12 x 18.12
2137 x 460
AMOD8424FEP 84.12 x 24.12
2137 x 613

405
Disconnect: Free-Stand Universal-Cutout Disconnect Enclosures
Type 12 Modular Free-Stand Disconnect Enclosures and Accessories
PH (763) 422-2211 • FX (763) 422-2600 • homanonline.com
Subject to change without notice © 2011 Pentair Technical Products
Barriers
Used to provide a barrier between individual enclosures in an
assembly of modular enclosures. The at plate is gasketed on both
sides and inserted between two modular enclosures. Bolts and
instructions are included.
Bulletin: A34Y
Catalog Number AxC in./mm
AMOD7218BAP 72.12 x 18.12
1832 x 460
AMOD8418BAP 84.12 x 18.12
2137 x 460
AMOD8424BAP 84.12 x 24.12
2137 x 613
Gasket Kit
Used to maintain enclosure rating when modular enclosures are
joined together; includes a one-piece gasket, bolts and instructions.
Bulletin: A34Y
Catalog Number AxC in./mm
AMOD7218FGK 72.12 x 18.12
1832 x 460
AMOD8418FGK 84.12 x 18.12
2137 x 460
AMOD8424FGK 84.12 x 24.12
2137 x 613

406
Disconnect: SEQUESTR® Preferred-Cutout Disconnect Enclosures
SEQUESTR® External Disconnect Preferred-Cutout Overview
PH (763) 422-2211 • FX (763) 422-2600 • homanonline.com
Subject to change without notice © 2011 Pentair Technical Products
SEQUESTR® Pre ferred- Cutout Disc onnect Enc losures
SEQUESTR® Ex ternal Di sconnect P referred -Cutout Ove rview
SEQUESTR® Preferred-Cutout Overview
Application
The SEQUESTR® enclosures have the standard preferred cutout on
the left-hand ange. They accept left-hand 1494V Allen-Bradley
variable-depth devices and left-hand Class 9422 Square D variable-
depth devices.
SEQUESTR cutouts are designed to house the following:
Allen-Bradley Bulletin 1494V DSX left-hand disconnect switches
with ange-mount variable depth operating mechanisms and
Bulletin 1494V ange-mount variable-depth operating mechanisms
for circuit breakers.
These enclosures will NOT accept Allen-Bradley Bulletin 1494F disconnect
devices or Bulletin 1494D circuit breaker operators.
Schneider Square D® Class 9422 disconnect switches with ange-
mount left-hand variable-depth operating mechanisms and Class
9422 ange-mount left-hand variable-depth operating mechanisms
for circuit breakers.
These enclosures will NOT accept Square D Class 9422 bracket-mounted
disconnect devices, Class 9422TGI or TG2 devices.
Ordering
Disconnect switch (or circuit breakers), operating handle and
operating mechanism are not furnished with enclosure. Consult
the Homan Specier’s Guide Technical Information chapter for
wire bend information and homanonline.com for disconnect
manufacturer information. Consult drawings to match the disconnect
device you are using with the correct enclosure size.
A complete assembly consists of:
1. An Enclosure
2. Door interlock brackets
3. Door latching system (2-point on SEQUESTR Enclosure,
3-point on main control cabinet doors)
4. Instructions to locate and install disconnect
5. Grounding hardware kit
6. Conductive panel in SEQUESTR External Disconnect
Enclosure

407
Disconnect: SEQUESTR® Preferred-Cutout Disconnect Enclosures
SEQUESTR® External Disconnect Enclosures
PH (763) 422-2211 • FX (763) 422-2600 • homanonline.com
Subject to change without notice © 2011 Pentair Technical Products
SEQUESTR® Ex ternal Di sconnect E nclosure s
SEQUESTR® External Disconnect Enclosure,
Type 12
Industry Standards
UL 508A Listed; Type 12; File No. E61997
cUL Listed per CSA C22.2 No. 94; Type 12; File No. E61997
NEMA/EEMAC Type 12
CSA File No. 42186: Type 12
IEC 60529, IP55
Application
Retrot disconnect enclosures to isolate incoming power and help
mitigate arc ash occurrences by moving the disconnect switch to
the SEQUESTR® Enclosure. Power is passed-through to the main
enclosure.
Features
• Interlocks with doors of main control cabinet when the disconnect
switch is powered ON
• Maintains UL Type 12 rating
• Provision for pass-through power into the main cabinet—blank
plate for customer modication
• Preferred disconnect cutout
• Quarter-turn screwdriver slot latch
• Hidden hinges
• Bonding provision on door
• Conductive back panel included
• Installation hardware and templates included
Specications
• 16 gauge steel
• Continuously welded and ground seams all around
• Hinged on right side
Finish
• ANSI 61 gray exterior and interior
• Included back panel has conductive nish
Accessories
See also Accessories.
Industrial Corrosion Inhibitors
Touch-Up Paint
Bulletin: A70D
Standard Product External Disconnect Enclosure including
back panel
Catalog Number A (in.) A (mm) B (in.) B (mm) C (in.) C (mm)
AXD18 34.45 875 14.00 356 18.12 460
AXD20 34.45 875 14.00 356 20.12 511
AXD24 34.45 875 14.00 356 24.12 613
Optional Terminal Plates
Catalog Number For
ATBP3060 30 and 60 amp switches
ATBP100 100 amp switches
ATBP200 200 amp switches
IP20 rated
Optional Replacement Conductive Panel
Catalog Number Panel Size (in.) Panel Size (mm) Description
A31P12G 31.00 x 12.16 787 x 309 16 gauge

408
Disconnect: SEQUESTR® Preferred-Cutout Disconnect Enclosures
SEQUESTR® External Disconnect Enclosures
PH (763) 422-2211 • FX (763) 422-2600 • homanonline.com
Subject to change without notice © 2011 Pentair Technical Products
SEQUESTR® External Disconnect Enclosure Package, Type 12
Industry Standards
UL 508A Listed; Type 12; File No. E61997
cUL Listed per CSA C22.2 No. 94; Type 12; File No. E61997
NEMA/EEMAC Type 12
CSA File No. 42186: Type 12
IEC 60529, IP55
Application
The SEQUESTR® External Disconnect Enclosure Package helps
mitigate arc ash occurrences when working on interior components
by isolating incoming power from the main enclosure. Shipped as
one unit for new installations, the disconnect switch and fuse block/
circuit breaker are mounted in the external enclosure, with terminal
connections to bring power to the main enclosure.
Features
•
Interlocks doors of main control cabinet when disconnect switch is
powered ON
• Mechanical interlock on main control enclosure activated by
master door prevents slave door from being opened rst
• Provision for pass-through power into the main enclosure
• Preferred disconnect cutout
• Quarter-turn, screwdriver slot latch on SEQUESTR™ Enclosure
• Rugged POWERGLIDE® Handle with three-point latch on main
control enclosure
• Grounding studs on body
• Bonding provision on door
• Conductive back panel included in SEQUESTR External Disconnect
Enclosure
• Optional back panel for main control cabinet for maximum
ordering exibility
• SEQUESTR External Disconnect Enclosure is shipped unattached
for easy disconnect installation
Specications
• A28X base enclosure
• A70D external disconnect enclosure
•
External disconnect enclosure 16 gauge steel; main control cabinet
10 gauge steel
• Continuously welded and ground seams all around
• Body ange trough excludes liquids and contaminants
• Heavy duty lifting eyes anchored into reinforced top
• Removable centerposts for easy back panel installation
• No disconnect cutout on main control cabinet
Finish
•
SEQUESTR External Disconnect Enclosure ANSI 61 gray exterior and
interior
• A28X main control cabinet ANSI 61 gray exterior and white interior
• SEQUESTR External Disconnect Enclosure back panel has
conductive nish
Accessories
See also Accessories.
Industrial Corrosion Inhibitors
Floor Stand Kit
PANELITE™ Enclosure Lights Overview
Bulletin: A28X1, A28X2 , A28XM

409
Disconnect: SEQUESTR® Preferred-Cutout Disconnect Enclosures
SEQUESTR® External Disconnect Enclosures
PH (763) 422-2211 • FX (763) 422-2600 • homanonline.com
Subject to change without notice © 2011 Pentair Technical Products
Standard Product One-Door Enclosure
Catalog Number AxBxC in./mm
B2
in./mm
D
in./mm Panel
Panel Size
in./mm
A72XD2818FTCLP 72.12 x 28.25 x 18.12
1832 x 718 x 460
42.25
1073
0
0
A72PM28 60.00 x 21.75
1524 x 552
A72XD3418FTCLP 72.12 x 34.25 x 18.12
1832 x 870 x 460
48.25
1226
0
0
A72PM34 60.00 x 27.75
1524 x 705
A72XD4018FTCLP 72.12 x 40.25 x 18.12
1832 x 1022 x 460
54.25
1378
0
0
A72PM40 60.00 x 33.75
1524 x 857
A84XD4018FTCLP 84.12 x 40.25 x 18.12
2137 x 1022 x 460
54.25
1378
6.00
152
A84PM40 72.00 x 33.75
1829 x 857
A90XD4018FTCLP 90.12 x 40.25 x 18.12
2289 x 1022 x 460
54.25
1378
9.00
229
A90PM40 78.00 x 33.75
1981 x 857
A90XD4020FTCLP 90.12 x 40.25 x 20.12
2289 x 1022 x 511
54.25
1378
9.00
229
A90PM40 78.00 x 33.75
1981 x 857
A84XD4024FTCLP 84.12 x 40.25 x 24.12
2137 x 1022 x 613
54.25
1378
6.00
152
A84PM40 72.00 x 33.75
1829 x 857
A90XD4024FTCLP 90.12 x 40.25 x 24.12
2289 x 1022 x 613
54.25
1378
9.00
229
A90PM40 78.00 x 33.75
1981 x 857
B dimension is large enclosure without External Disconnect Enclosure.
B2 dimension is overall size including External Disconnect Enclosure.
Purchase panels separately.

410
Disconnect: SEQUESTR® Preferred-Cutout Disconnect Enclosures
SEQUESTR® External Disconnect Enclosures
PH (763) 422-2211 • FX (763) 422-2600 • homanonline.com
Subject to change without notice © 2011 Pentair Technical Products
Standard Product Two-Door Enclosures
Catalog Number AxBxC in./mm
B2
in./mm
D
in./mm
Stiener
Locations
in./mm Panel
Panel Size
in./mm
A72XD5418FTCLP 72.12 x 54.50 x 18.12
1832 x 1384 x 460
68.50
1740
0
0
None
None
A72PM54 60.00 x 48.00
1524 x 1219
A72XD6618FTCLP 72.12 x 66.50 x 18.12
1832 x 1689 x 460
80.50
2045
0
0
21.00
533
A72PM66 60.00 x 60.00
1524 x 1524
A72XD7818FTCLP 72.12 x 78.50 x 18.12
1832 x 1994 x 460
92.50
2350
0
0
24.00
610
A72PM78 60.00 x 72.00
1524 x 1829
A84XD7818FTCLP 84.12 x 78.50 x 18.12
2137 x 1994 x 460
92.50
2350
6.00
152
24.00
910
A84PM78 72.00 x 72.00
1829 x 1829
A90XD7818FTCLP 90.12 x 78.50 x 18.12
2289 x 1994 x 460
92.50
2350
9.00
229
24.00
610
A90PM78 78.00 x 72.00
1981 x 1829
A90XD7820FTCLP 90.12 x 78.50 x 20.12
2289 x 1994 x 511
92.50
2350
9.00
229
24.00
610
A90PM78 78.00 x 72.00
1981 x 1829
A72XD7824FTCLP 72.12 x 78.50 x 24.12
1832 x 1994 x 613
92.50
2350
0
0
24.00
610
A72PM78 60.00 x 72.00
1524 x 1829
A84XD7824FTCLP 84.12 x 78.50 x 24.12
2137 x 1994 x 613
92.50
2350
6.00
152
24.00
610
A84PM78 72.00 x 72.00
1829 x 1829
A90XD7824FTCLP 90.12 x 78.50 x 24.12
2289 x 1994 x 613
92.50
2350
9.00
229
24.00
610
A90PM78 78.00 x 72.00
1981 x 1829
B dimension is large enclosure without External Disconnect Enclosure.
B2 dimension is overall size including External Disconnect Enclosure.
Purchase panels separately.

411
Disconnect: SEQUESTR® Preferred-Cutout Disconnect Enclosures
SEQUESTR® External Disconnect Enclosures
PH (763) 422-2211 • FX (763) 422-2600 • homanonline.com
Subject to change without notice © 2011 Pentair Technical Products
Standard Product Three-Door Enclosures
Catalog Number AxBxC in./mm
B2
in./mm
D
in./mm Large Panel
Number of
Large Panels
Size of
Large Panels
in./mm Small Panel
Number of
Small Panels
Size of
Small Panels
in./mm
A72XD3EQ18FTCLP 72.12 x 100.75 x 18.12
1832 x 2559 x 460
114.75
2915
0
0
A72PM66 1 60.00 x 60.00
1524 x 1524
A72PM34 1 60.00 x 27.75
1524 x 705
A72XD3EW18FTCLP 72.12 x 118.75 x 18.12
1832 x 3016 x 460
132.75
3372
0
0
A72PM78 1 60.00 x 72.00
1524 x 1829
A72PM40 1 60.00 x 33.75
1524 x 857
A84XD3EW18FTCLP 84.12 x 118.75 x 18.12
2137 x 3016 x 460
132.75
3372
6.00
152
A84PM78 1 72.00 x 72.00
1829 x 1829
A84PM40 1 72.00 x 33.75
1829 x 857
A84XD3EW24FTCLP 84.12 x 118.75 x 24.12
2137 x 3016 x 613
132.75
3372
6.00
152
A84PM78 1 72.00 x 72.00
1829 x 1829
A84PM40 1 72.00 x 33.75
1829 x 857
A90XD3EW24FTCLP 90.12 x 118.75 x 24.12
2289 x 3016 x 613
132.75
3372
9.00
229
A90PM78 1 78.00 x 72.00
1981 x 1829
A90PM40 1 78.00 x 33.75
1981 x 857
B dimension is large enclosure without External Disconnect Enclosure.
B2 dimension is overall size including External Disconnect Enclosure.
Purchase panels separately.

412
Disconnect: SEQUESTR® Preferred-Cutout Disconnect Enclosures
SEQUESTR® External Disconnect Enclosures
PH (763) 422-2211 • FX (763) 422-2600 • homanonline.com
Subject to change without notice © 2011 Pentair Technical Products
Standard Product Four-Door Enclosures
Catalog Number AxBxC in./mm
B2
in./mm
D
in./mm Large Panel
Number of
Panels
Size of
Panels
in./mm
A84XD4EW18FTCLP 84.12 x 158.00 x 18.12
2137 x 4013 x 460
172.00
4369
6.00
152
A84PM78 2 72.00 x 72.00
1829 x 1829
A90XD4EW18FTCLP 90.12 x 158.00 x 18.12
2289 x 4013 x 460
172.00
4369
9.00
229
A90PM78 2 78.00 x 72.00
1981 x 1829
A84XD4EW24FTCLP 84.12 x 158.00 x 24.12
2137 x 4013 x 613
172.00
4369
6.00
152
A84PM78 2 72.00 x 72.00
1829 x 1829
A90XD4EW24FTCLP 90.12 x 158.00 x 24.12
2289 x 4013 x 613
172.00
4369
9.00
229
A90PM78 2 78.00 x 72.00
1981 x 1829
B dimension is large enclosure without External Disconnect Enclosure.
B2 dimension is overall size including External Disconnect Enclosure.
Purchase panels separately.

413
Disconnect: SEQUESTR® Preferred-Cutout Disconnect Enclosures
SEQUESTR® External Disconnect Enclosures
PH (763) 422-2211 • FX (763) 422-2600 • homanonline.com
Subject to change without notice © 2011 Pentair Technical Products
Standard Product Five-Door Enclosures
Catalog Number AxBxC in./mm
B2
in./mm
D
in./mm Large Panel
Number of
Large Panels
Size of
Large Panels
in./mm Small Panel
Number of
Small Panels
Size of
Small Panels
in./mm
A84XD5EW18FTCLP 84.12 x 197.75 x 18.12
2137 x 5023 x 460
211.00
5359
6.00
152
A84PM78 1 72.00 x 72.00
1829 x 1829
A84PM40 1 72.00 x 33.75
1829 x 857
A90XD5EW18FTCLP 90.12 x 197.75 x 18.12
2289 x 5023 x 460
211.00
5359
9.00
229
A90PM78 1 78.00 x 72.00
1981 x 1829
A90PM40 1 78.00 x 33.75
1981 x 857
A84XD5EW24FTCLP 84.12 x 197.75 x 24.12
2137 x 5023 x 613
211.00
5359
6.00
152
A84PM78 1 72.00 x 72.00
1829 x 1829
A84PM40 1 72.00 x 33.75
1829 x 857
A90XD5EW24FTCLP 90.12 x 197.75 x 24.12
2289 x 5023 x 613
211.00
5359
9.00
229
A90PM78 1 78.00 x 72.00
1981 x 1829
A90PM40 1 78.00 x 33.75
1981 x 857
B dimension is large enclosure without External Disconnect Enclosure.
B2 dimension is overall size including External Disconnect Enclosure.
Purchase panels separately.

414
Disconnect: SEQUESTR® Preferred-Cutout Disconnect Enclosures
SEQUESTR® External Disconnect Enclosures
PH (763) 422-2211 • FX (763) 422-2600 • homanonline.com
Subject to change without notice © 2011 Pentair Technical Products
Standard Product Six-Door Enclosure
Catalog Number AxBxC in./mm
B2
in./mm
D
in./mm Large Panel
Number of
Large Panels
Size of
Panels
in./mm
A84XD6EW24FTCLP 84.12 x 236.00 x 24.12
2137 x 5994 x 613
250.00
6350
6.00
152
A84PM78 3 72.00 x 72.00
1829 x 1829
A90XD6EW24FTCLP 90.12 x 197.75 x 24.12
2289 x 5023 x 613
250.00
6350
9.00
229
A90PM78 3 78.00 x 72.00
1981 x 1829
B dimension is large enclosure without External Disconnect Enclosure.
B2 dimension is overall size including External Disconnect Enclosure.
Purchase panels separately.

415
Disconnect: SEQUESTR® Preferred-Cutout Disconnect Enclosures
SEQUESTR® External Disconnect Enclosures
PH (763) 422-2211 • FX (763) 422-2600 • homanonline.com
Subject to change without notice © 2011 Pentair Technical Products
Optional Terminal Plates
Catalog Number For
ATBP3060 30 and 60 amp switches
ATBP100 100 amp switches
ATBP200 200 amp switches
Terminal Plates are IP20 rated.
Disconnect Mounting Space
Disconnects are located by dimension E1. Wiring space W1 is
available when disconnect is installed in the enclosure.
See the Homan Specier’s Guide Technical Information chapter
for E1 Spacing by Enclosure Height for various disconnect switch
manufacturers.
Refer to National Electrical Code® 2005 article 430.10(B) for
wiring space required for line side conductors to be connected to
disconnect. Verify your application to determine if wiring space
is adequate.
Consult Space Occupied by Disconnect drawing to determine whether
the disconnect device you are using will t the enclosure size you have
selected.

416
Disconnect: Disconnect Enclosure Accessories
Accessories for Free-Stand or Floor-Mount Disconnect Enclosures
PH (763) 422-2211 • FX (763) 422-2600 • homanonline.com
Subject to change without notice © 2011 Pentair Technical Products
Disconnec t Enclosur e Accessori es
Accessories f or Free-Sta nd or Floor-M ount Disc onnect Enc losures
Operator Adapters for Universal Cutouts Used on all Homan disconnect enclosures with a universal ange
cutout.
An operator adapter is required to install a disconnect in Bulletin
A21, A28 and A34 Homan enclosures that have a universal
cutout. Operator adapters include an adapter plate and additional
components needed to interlock the master door with the
disconnect operating mechanism. Panel drilling and installation
instructions are furnished with each operator adapter.
Each brand and type of disconnect requires a dierent operator
adapter. Be sure to select the correct operator adapter and enclosure
for the disconnect device selected.
Bulletin: A80
Catalog Number Brand and Type of Operator
A21ABA Allen-Bradley 1494F and 1494D xed-depth mechanisms
A21ABVA Allen-Bradley 1494V variable-depth mechanisms;
Allen-Bradley 140U, 1494C, and 194RC cable-operated mechanisms
A21CHVA ABB Controls variable-depth;
S1, S2, T5 cable size; Cutler-Hammer C361, C371, and C371 Flex Shaft
A21WHA Eaton Cutler-Hammer/Westinghouse SM mechanisms
A21WHAMTA Eaton Cutler-Hammer/Westinghouse AMT and ex-cable mechanisms
A21GETDA General Electric STDA and ex-cable mechanisms
A21ITE Siemens I-T-E Max-Flex™ ; ABB Controls Cable S3-S5, S6, S7
A21SDA Square D® Class 9422 variable-depth and ex-cable mechanisms
Operator Adapters for Preferred Cutouts An operator adapter is required to install a disconnect in Bulletin
A21S4, A28S4 and WS2D Homan enclosures that have a preferred
cutout. Operator adapters include components needed to interlock
the master door with the disconnect operating mechanism. Panel
drilling and installation instructions are furnished with each operator
adapter.
Each brand and type of disconnect requires a dierent operator
adapter. Be sure to select the proper operator adapter and enclosure
for the disconnect that you have selected.
Bulletin: A28Y
Catalog Number Brand and Type of Operator
APCABVA Allen-Bradley 1494V variable-depth
APCCHVA Eaton Cutler-Hammer C361, C371 and C371 Flex Shaft™
APCGETDA General Electric STDA
APCITE Siemens I-T-E Max-Flex™
APCSDA Schneider Square D® Class 9422 variable-depth and cable mechanisms
Blank Adapter Plates, Mild Steel Used to cover ange cutouts in disconnect enclosures when
disconnects are not installed. This greatly increases the versatility of
disconnect enclosures enabling them to also be used as regular Type
12 enclosures.
Homan adapter plates are made from heavy gauge steel and have
an oil-resistant gasket to maintain a dust-tight and oil-tight seal.
Mounting hardware and instructions are included.
Door hardware is not furnished with blank adapter plate. Door
hardware must be ordered separately from the disconnect
manufacturer when using catalog numbers A22BAP on Bulletin A22
Enclosures and A3456BAP on Bulletin A25 Enclosures.
Bulletin: A80
Catalog Number For Mild Steel Enclosure Bulletin Number
A21BAP A21, A28, A34 (Universal Cutouts)
A22BAP A22 only
A3456BAP A19, CW1, A25, A26 (Preferred Cutouts)
A22BAP will t all Bulletin A22 enclosures except A48AB3812A2LP and A60AB3812A2LP.
A3456BAP will t all Bulletin A25 enclosures except A60SA3812A24LP.

417
Disconnect: Disconnect Enclosure Accessories
Accessories for Free-Stand or Floor-Mount Disconnect Enclosures
PH (763) 422-2211 • FX (763) 422-2600 • homanonline.com
Subject to change without notice © 2011 Pentair Technical Products
Blank Adapter Plates, Stainless Steel Used to cover ange cutouts in disconnect enclosures when
disconnects are not installed.
Homan adapter plates are made from heavy gauge Type 304
stainless steel and have an oil-resistant gasket to maintain the dust-
tight and oil-tight qualities of the enclosure. The plates have a #4
brushed nish. All necessary mounting hardware and instructions are
included.
Bulletin: A80
Catalog Number For Enclosure Bulletin Number
A2128BAPSS A19S, CWS, A21S4, A28S4 and WS2D with preferred cutouts
Enclosure Stabilizers Helps prevent injury to workers by stabilizing oor-mount enclosures
which are not bolted down. To install, slip the stabilizer under the
oor stand and tighten two thumb screws. Made from .19-in. (5-mm)
steel plate. Bright orange nish.
Bulletin: A80
Catalog Number Description
AENST Two stabilizers
Platform Assembly
Application
The Platform Assembly is a 6.00-in. (152-mm) high spacer that
is required with all 24.12-in. (613-mm) and deeper disconnect
enclosures when short connecting rods are used with the following
disconnect models.
• ABB Controls ange-operated devices
• Cutler-Hammer C361 devices
• Cutler-Hammer C371 mechanisms which use C371E, F, G, K
operating mechanism (see next paragraph for option)
• General Electric Type TDA devices
• Square D® Class 9422 devices
Consult factory for space occupied on panel when platform is used.
Ordering
The platform assembly can be omitted if long connecting rods are
ordered in place of short connecting rods.
• For Cutler-Hammer Operating mechanisms C37IE and C37IF, order
catalog number C37ICSI connecting rod. For C37IG and C37IK,
order catalog number C37ICS2 connecting rod.
• For General Electric devices, order catalog number TDSR extended
length drive rod.
• For Square D devices, order catalog number 9422-R2 extra long
operating rod(s). Some devices require two rods.
Bulletin: A28Y
Catalog Number Description
ADSCPA Set of 4 rods and mounting hardware