ATV312_installation_manual_EN_V1 Installation Directions
2016-09-04
: Pdf 149200-Installationsheet 149200-InstallationSheet B4 unilog
Open the PDF directly: View PDF
.
Page Count: 32

BBV46391
www.schneider-electric.com
2354235 11/2008
Altivar 312
Variable speed drives
for asynchronous motors
Installation manual
04/2009

BBV46391 04/2009 3
Contents
Important Information __________________________________________________________________________________________ 4
Before you begin______________________________________________________________________________________________ 5
Documentation structure________________________________________________________________________________________ 7
Steps for setting up____________________________________________________________________________________________ 8
Setup - Preliminary recommendations _____________________________________________________________________________ 9
Drive ratings ________________________________________________________________________________________________ 10
Dimensions and weights_______________________________________________________________________________________ 12
Mounting___________________________________________________________________________________________________ 14
Wiring _____________________________________________________________________________________________________ 17
Check list __________________________________________________________________________________________________ 29
Maintenance ________________________________________________________________________________________________ 30
Short-circuit rating and branch circuit protection ____________________________________________________________________ 31

4BBV46391 04/2009
Important Information
NOTICE
Read these instructions carefully, and look at the equipment to become familiar with the device before trying to install, operate, or maintain
it. The following special messages may appear throughout this documentation or on the equipment to warn of potential hazards or to call
attention to information that clarifies or simplifies a procedure.
PLEASE NOTE
The word "drive" as used in this manual refers to the controller portion of the adjustable speed drive as defined by NEC.
Electrical equipment should be installed, operated, serviced, and maintained only by qualified personnel. No responsibility is assumed by
Schneider Electric for any consequences arising out of the use of this product.
© 2009 Schneider Electric. All Rights Reserved
DANGER
DANGER indicates an imminently hazardous situation, which, if not avoided, will result in death or serious injury.
WARNING
WARNING indicates a potentially hazardous situation, which, if not avoided, can result in death, serious injury or
equipment damage.
CAUTION
CAUTION indicates a potentially hazardous situation, which, if not avoided, can result in injury or equipment
damage.
CAUTION
CAUTION, used without the safety alert symbol, indicates a potentially hazardous situation which, if not avoided, can
result in equipment damage.
The addition of this symbol to a Danger or Warning safety label indicates that an electrical hazard exists, which will result in
personal injury if the instructions are not followed.
This is the safety alert symbol. It is used to alert you to potential personal injury hazards. Obey all safety messages that follow
this symbol to avoid possible injury or death.

BBV46391 04/2009 5
Before you begin
Read and understand these instructions before performing any procedure with this drive.
DANGER
HAZARD OF ELECTRIC SHOCK, EXPLOSION, OR ARC FLASH
• Read and understand this manual before installing or operating the Altivar 312 drive. Installation, adjustment, repair, and
maintenance must be performed by qualified personnel.
• The user is responsible for compliance with all international and national electrical code requirements with respect to grounding of
all equipment.
• Many parts of this drive, including the printed circuit boards, operate at the line voltage. DO NOT TOUCH. Use only electrically
insulated tools.
• DO NOT touch unshielded components or terminal strip screw connections with voltage present.
• DO NOT short across terminals PA/+ and PC/– or across the DC bus capacitors.
• Before servicing the drive:
- Disconnect all power, including external control power that may be present.
- Place a “DO NOT TURN ON” label on all power disconnects.
- Lock all power disconnects in the open position.
- WAIT 15 MINUTES to allow the DC bus capacitors to discharge. Then follow the “Bus Voltage Measurement Procedure” page
16 to verify that the DC voltage is less than 42 V. The drive LEDs are not indicators of the absence of DC bus voltage.
• Install and close all covers before applying power or starting and stopping the drive.
Failure to follow these instructions will result in death or serious injury.
DANGER
UNINTENDED EQUIPMENT OPERATION
• Read and understand this manual before installing or operating the Altivar 312 drive.
• Any changes made to the parameter settings must be performed by qualified personnel.
Failure to follow these instructions will result in death or serious injury.
WARNING
DAMAGED DRIVE EQUIPMENT
Do not operate or install any drive or drive accessory that appears damaged.
Failure to follow these instructions can result in death, serious injury, or equipment damage.
WARNING
LOSS OF CONTROL
• The designer of any control scheme must consider the potential failure modes of control paths and, for certain critical control functions,
provide a means to achieve a safe state during and after a path failure. Examples of critical control functions are emergency stop and
overtravel stop.
• Separate or redundant control paths must be provided for critical control functions.
• System control paths may include communication links. Consideration must be given to the implications of unanticipated transmission
delays or failures of the link.a
Failure to follow these instructions can result in death, serious injury, or equipment damage.
a. For additional information, refer to NEMA ICS 1.1 (latest edition), “Safety Guidelines for the Application, Installation, and Maintenance of Solid State Control” and to
NEMA ICS 7.1 (latest edition), “Safety Standards for Construction and Guide for Selection, Installation and Operation of Adjustable-Speed Drive Systems.”

6BBV46391 04/2009
Before you begin
CAUTION
INCOMPATIBLE LINE VOLTAGE
Before turning on and configuring the drive, ensure that the line voltage is compatible with the supply voltage range shown on the drive
nameplate. The drive may be damaged if the line voltage is not compatible.
Failure to follow these instructions can result in injury or equipment damage.
CAUTION
RISK OF DAMAGE TO THE MOTOR
The use of external overload protection is required under the following conditions:
• Repowering up the product since there is no motor thermal state memory.
• Running multiple motors.
• Running motors rated at less than 0.2 times the nominal drive current.
• Using motor switching.
Failure to follow these instructions can result in equipment damage

BBV46391 04/2009 7
Documentation structure
The following Altivar 312 technical documents are available on the Schneider Electric website (www.schneider-electric.com) as well as on
DVD-ROM (reference VW3A8200).
Installation manual
This manual describes how to install and wire the drive.
Programming manual
This manual describes the functions, parameters and use of the drive terminal (integrated display terminal, optional graphic display terminal
and optional remote terminal).
Simplified manual
This manual is an extract from programming and installation manual. This manual is delivered with the drive.
Quick Start
The Quick Start describes how to wire and configure the drive to start motor quickly and simply for simple applications. This document is
delivered with the drive.
Communication manuals: Modbus, CANopen, ...
These manual describes the assembly, connection to the bus or network, signaling, diagnostics, and configuration of the communication-
specific parameters.
They also describe the protocol communication services.
Communication variables guide
The Communication variables manual defines the drive control processes and the drive variables which can be accessed by the
communication buses: Modbus, CANopen, ...

8BBV46391 04/2009
Steps for setting up
1. Receive and inspect the drive
vCheck that the catalog number printed on the label is the same as that on
the purchase order.
vRemove the Altivar from its packaging and check that it has not been
damaged in transit.
2. Check the line voltage
vCheck that the voltage range of the drive is compatible
with the line voltage (see pages 10 and 11).
3. Mount the drive
vMount the drive in accordance with the
instructions in this document (see page 14).
vInstall any options required (see option
documentation).
Steps 2 to 4 must
be performed with
the power off.
4. Wire the drive (see page 17)
vConnect the motor, ensuring that its
connections correspond to the voltage.
vConnect the line supply, after making
sure that the power is off.
vConnect the control part.
5. Please refer to the
programming manual.
PROGRAMMING
INSTALLATION

BBV46391 04/2009 9
Setup - Preliminary recommendations
Prior to switching on the drive
Prior to configuring the drive
Line contactor
DANGER
UNINTENDED EQUIPMENT OPERATION
Ensure that all logic inputs are inactive to help prevent an accidental startup.
Failure to follow these instructions will result in death or serious injury.
DANGER
UNINTENDED EQUIPMENT OPERATION
• Read and understand this manual before installing or operating the Altivar 312 drive.
• Any changes made to the parameter settings must be performed by qualified personnel.
• Ensure that all logic inputs are inactive to help prevent an accidental startup when modifying parameters.
Failure to follow these instructions will result in death or serious injury.
CAUTION
RISK OF DAMAGE TO THE DRIVE
• Avoid operating the contactor frequently to avoid premature aging of the filter capacitors.
• Power cycling must be more than 60 seconds.
Failure to follow these instructions can result in equipment damage.

10 BBV46391 04/2009
Drive ratings
Single phase supply voltage: 200…240 V 50/60 Hz
For three phase output 200/240 V motors
Three phase supply voltage: 200…240 V 50/60 Hz
For three phase output 200/240 V motors
(1)These power ratings and currents are for a maximum ambient temperature of 50°C and a switching frequency of 4 kHz in continuous
operation.The switching frequency is adjustable from 2 to 16 kHz.
Above 4 kHz, the drive will reduce the switching frequency in the event of excessive temperature rise. The temperature rise is controlled
by a sensor in the power module. Nonetheless, the nominal drive current should be derated if operation above 4 kHz needs to be
continuous.
Derating curves are shown on page 15 as a function of switching frequency, ambient temperature and mounting conditions.
(2)Current on a line supply with the "Max. prospective line Isc" indicated.
(3)Peak current on power-up, for the max. voltage (240 V + 10%).
(4)For 60 seconds.
(5)These references can be ordered without terminal board in order to integrate an optionnal communication board. Add a B at the end of
the reference. For example, ATV312HU11M2 becomes ATV312HU11M2B.
Motor Line supply (input) Drive (output) Reference Size
Power
indicated
on plate (1)
Max. current line
(2)
Apparent
power
Max.
inrush
current
(3)
Power
dissipated
at nominal
current
Nominal
current
(1)
Max.
transient
current (1)
(4)
at
200 V
at
240 V
kW HP A A kVA A W A A
0.18 0.25 3.0 2.5 0.6 10 24 1.5 2.3 ATV312H018M2(5) 3
0.37 0.5 5.3 4.4 1.0 10 41 3.3 5.0 ATV312H037M2(5) 3
0.55 0.75 6.8 5.8 1.4 10 46 3.7 5.6 ATV312H055M2(5) 4
0.75 1 8.9 7.5 1.8 10 60 4.8 7.2 ATV312H075M2(5) 4
1.1 1.5 12.1 10.2 2.4 19 74 6.9 10.4 ATV312HU11M2(5) 6
1.5 2 15.8 13.3 3.2 19 90 8.0 12.0 ATV312HU15M2(5) 6
2.2 3 21.9 18.4 4.4 19 123 11.0 16.5 ATV312HU22M2(5) 7
Motor Line supply (input) Drive (output) Reference Size
Power
indicated
on plate (1)
Max. current line
(2)
Apparent
power
Max.
inrush
current
(3)
Power
dissipated
at nominal
current
Nominal
current
(1)
Max.
transient
current (1)
(4)
at
200 V
at
240 V
kW HP A A kVA A W A A
0.18 0.25 2.1 1.9 0.7 10 23 1.5 2.3 ATV312H018M3 1
0.37 0.5 3.8 3.3 1.3 10 38 3.3 5.0 ATV312H037M3 1
0.55 0.75 4.9 4.2 1.7 10 43 3.7 5.6 ATV312H055M3 2
0.75 1 6.4 5.6 2.2 10 55 4.8 7.2 ATV312H075M3 2
1.1 1.5 8.5 7.4 3.0 10 71 6.9 10.4 ATV312HU11M3 5
1.5 211.1 9.6 3.8 10 86 8.0 12.0 ATV312HU15M3 5
2.2 3 14.9 13.0 5.2 10 114 11.0 16.5 ATV312HU22M3 6
33 19.1 16.6 6.6 19 146 13.7 20.6 ATV312HU30M3 7
45 24 21.1 8.4 19 180 17.5 26.3 ATV312HU40M3 7
5.5 7.5 36.8 32.0 12.8 23 292 27.5 41.3 ATV312HU55M3 8
7.5 10 46.8 40.9 16.2 23 388 33.0 49.5 ATV312HU75M3 8
11 15 63.5 55.6 22.0 93 477 54.0 81.0 ATV312HD11M3 9
15 20 82.1 71.9 28.5 93 628 66.0 99.0 ATV312HD15M3 9

BBV46391 04/2009 11
Drive ratings (continued)
Three phase supply voltage: 380…500 V 50/60 Hz
For three phase output 380/500 V motors
Three phase supply voltage: 525…600 V 50/60 Hz
For three phase output 525/600 V motors
(1)These power ratings and currents are for a maximum ambient temperature of 50°C and a switching frequency of 4 kHz in continuous
operation. The switching frequency is adjustable from 2 to 16 kHz.
Above 4 kHz, the drive will reduce the switching frequency in the event of excessive temperature rise. The temperature rise is controlled
by a sensor in the power module. Nonetheless, the nominal drive current should be derated if operation above 4 kHz needs to be
continuous.
Derating curves are shown on page 15 as a function of switching frequency, ambient temperature and mounting conditions.
(2)Current on a line supply with the "Max. prospective line Isc" indicated.
(3)Peak current on power-up, for the max. voltage (500 V + 10%, 600 V + 10%).
(4)For 60 seconds.
(5)These references can be ordered without terminal board in order to integrate an optionnal communication board. Add a B at the end of
the reference. For example, ATV312H037N4 becomes ATV312H037N4B.
(6)The use of an AC choke, which must be ordered separately (please refer to the catalog), is mandatory on these drives
Motor Line supply (input) Drive (output) Reference Size
Power
indicated
on plate (1)
Max. current line
(2)
Apparent
power
Max.
inrush
current
(3)
Power
dissipated
at nominal
current
Nominal
current
(1)
Max.
transient
current (1)
(4)
at
380 V
at
500 V
kW HPAAkVAA WA A
0.37 0.5 2.2 1.7 1.5 10 32 1.5 2.3 ATV312H037N4(5) 6
0.55 0.75 2.8 2.2 1.8 10 37 1.9 2.9 ATV312H055N4(5) 6
0.75 1 3.6 2.7 2.4 10 41 2.3 3.5 ATV312H075N4(5) 6
1.1 1.5 4.9 3.7 3.2 10 48 3.0 4.5 ATV312HU11N4(5) 6
1.5 2 6.4 4.8 4.2 10 61 4.1 6.2 ATV312HU15N4(5) 6
2.2 3 8.9 6.7 5.9 10 79 5.5 8.3 ATV312HU22N4(5) 7
33 10.9 8.3 7.1 10 125 7.1 10.7 ATV312HU30N4(5) 7
45 13.9 10.6 9.2 10 150 9.5 14.3 ATV312HU40N4(5) 7
5.5 7.5 21.9 16.5 15.0 30 232 14.3 21.5 ATV312HU55N4(5) 8
7.5 10 27.7 21.0 18.0 30 269 17.0 25.5 ATV312HU75N4(5) 8
11 15 37.2 28.4 25.0 97 397 27.7 41.6 ATV312HD11N4(5) 9
15 20 48.2 36.8 32.0 97 492 33.0 49.5 ATV312HD15N4(5) 9
Motor Line supply (input) Drive (output) Reference Size
Power
indicated
on plate (1)
Max. current line
(2)
Apparent
power
Max.
inrush
current
(3)
Power
dissipated
at
nominal
current
Nominal
current
(1)
Max.
transient
current (1)
(4)
at
525 V
at
600 V
kW HP A A kVA A W A A
0.75 1 2.8 2.4 2.5 12 36 1.7 2.6 ATV312H075S6(6) 6
1.5 2 4.8 4.2 4.4 12 48 2.7 4.1 ATV312HU15S6(6) 6
2.2 3 6.4 5.6 5.8 12 62 3.9 5.9 ATV312HU22S6(6) 7
4510.7 9.3 9.7 12 94 6.1 9.2 ATV312HU40S6(6) 7
5.5 7.5 16.2 14.1 15.0 36 133 9.0 13.5 ATV312HU55S6(6) 8
7.5 10 21.3 18.5 19.0 36 165 11.0 16.5 ATV312HU75S6(6) 8
11 15 27.8 24.4 25.0 117 257 17.0 25.5 ATV312HD11S6(6) 9
15 20 36.4 31.8 33.0 117 335 22.0 33.0 ATV312HD15S6(6) 9

12 BBV46391 04/2009
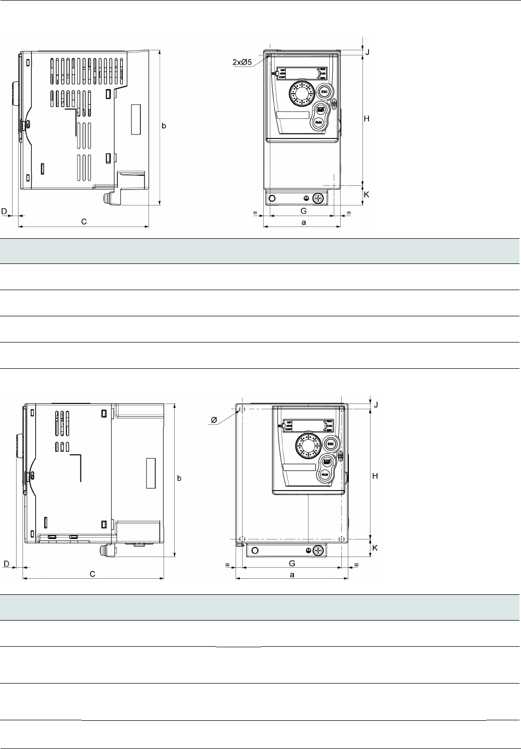
Dimensions and weights
ATV312H a
mm (in.)
b
mm (in.)
C
mm (in.)
D
mm (in.)
G
mm (in.)
H
mm (in.)
J
mm (in.)
K
mm (in.)
Ø
mm (in.)
Weight
kg (lb)
018M3, 037M3 72
(2.83)
145
(5.70)
122
(4.80)
6
(0.24)
60
(2.36)
121.5
(4.76)
2 x 5
(2x0.2)
18.5
(0.73)
2 x 5
(2x0.2)
0.9
(1.98)
055M3, 075M3 72
(2.83)
145
(5.70)
132
(5.19)
6
(0.24)
60
(2.36)
121.5
(4.76)
2 x 5
(2x0.2)
18.5
(0.73)
2 x 5
(2x0.2)
0.9
(1.98)
018M2, 037M2 72
(2.83)
145
(5.70)
132
(5.19)
6
(0.24)
60
(2.36)
121.5
(4.76)
2 x 5
(2x0.2)
18.5
(0.73)
2 x 5
(2x0.2)
1.05
(2.31)
055M2, 075M2 72
(2.83)
145
(5.70)
142
(5.59)
6
(0.24)
60
(2.36)
121.5
(4.76)
2 x 5
(2x0.2)
18.5
(0.73)
2 x 5
(2x0.2)
1.05
(2.31)
ATV312H a
mm (in.)
b
mm (in.)
C
mm (in.)
D
mm (in.)
G
mm (in.)
H
mm (in.)
J
mm (in.)
K
mm (in.)
Ø
mm (in.)
Weight
kg (lb)
U1pM3 105
(4.13)
143
(5.63)
132
(5.19)
6
(0.24)
93
(3.66)
121.5
(4.76)
5
(0.2)
16.5
(0.65)
2 x 5
(2x0.2)
1.25
(2.76)
U1pM2, U22M3,
037N4 to U15N4
075S6, U15S6p
107
(4.21)
143
(5.63)
152
(5.98)
6
(0.24)
93
(3.66)
121.5
(4.76)
5
(0.2)
16.5
(0.65)
2 x 5
(2x0.2)
1.35
(2.98)
U22M2, Up0M3,
U22N4 to U40N4,
U22S6, U40S6
142
(5.59)
184
(7.24)
152
(5.98)
6
(0.24)
126
(4.96)
157
(6.18)
6.5
(0.26)
20.5
(0.81)
4 x 5
(4x0.2)
2.35
(5.18)

BBV46391 04/2009 13
Dimensions and weights (continued)
ATV312H a
mm (in.)
b
mm (in.)
C
mm (in.)
D
mm (in.)
G
mm (in.)
H
mm (in.)
J
mm (in.)
K
mm (in.)
Ø
mm (in.)
Weight
kg (lb)
U55M3, U75M3,
U55N4, U75N4,
U55S6, U75S6
180
(7.09)
232
(9.13)
172
(6.77)
6
(0.24)
160
(6.30)
210
(8.27)
5
(0.2)
17
(0.67)
4 x 5
(4x0.2)
4.70
(10.36)
ATV312H a
mm (in.)
b
mm (in.)
C
mm (in.)
D
mm (in.)
G
mm (in.)
H
mm (in.)
J
mm (in.)
K
mm (in.)
Ø
mm (in.)
Weight
kg (lb)
D1pM3,
D1pN4,
D1pS6
245
(9.65)
329.5
(12.97)
192
(7.56)
6
(0.24)
225
(8.86)
295
(11.61)
7
(0.28)
27.5
(1.08)
4 x 6
(4x0.24)
9
(19.84)

14 BBV46391 04/2009
Mounting
Mounting and temperature conditions
Install the unit vertically, at ± 10°.
Do not place it close to heating elements.
Leave sufficient free space so that the air required for cooling purposes can circulate from the bottom to the top of
the unit.
Free space in front of unit: 10 mm (0.39 in.) minimum.
When IP20 protection is adequate, we recommend that the vent cover on the top of the drive be removed, as
shown below.
Removing the vent cover
Mounting types
3 types of mounting are possible:
Note: For switching frequencies above 4 kHz and derating conditions, please refer to the derating curves for guidelines.
Type A
mounting:
Free space u 50 mm (2 in.) on each side, with
vent cover fitted. Mounting type A is suitable
for drive operation at surrounding air
temperature less or equal to 50°C (122°F).
Type B
mounting:
Drives mounted side-by-side, vent cover
should be removed (the degree of protection
becomes IP20).
Type C
mounting:
.
Free space u 50 mm (2 in.) on each side. Vent
cover should be removed for operation at
surrounding air temperature above 50°C
(122°F). The degree of protection becomes
IP20
≥ 50 mm
≥ 50 mm
Example ATV312HU11M3
u 50 mm
2 in.
u 50 mm
2 in.
u 50 mm
2 in.
u 50 mm
2 in.

BBV46391 04/2009 15
Mounting (continued)
Derating curves
Derating curves for the drive current In as a function of the temperature, switching frequency and type of mounting.
For intermediate temperatures (e.g. 55°C; 131 °F), interpolate between 2 curves.
Flow of air
If you are installing the drives in enclosures, make provision for a flow of air at least equal to the value given in the table below for each drive.
ATV312H Flow rate
m3/hour ft3/min
018M2, 037M2, 055M2,
018M3, 037M3, 055M3,
037N4, 055N4, 075N4, U11N4
075S6, U15S6
18 11
075M2, U11M2, U15M2
075M3, U11M3, U15M3
U15N4, U22N4
U22S6, U40S6
33 19
U22M2,
U22M3, U30M3, U40M3
U30N4, U40N4
U55S6, U75S6
93 55
U55M3
U55N4, U75N4
D11S6
102 60
U75M3, D11M3,
D11N4, D15N4
D15S6
168 99
D15M3 216 127
In = 100 %
- 25 %
- 35 %
- 45 %
- 55 %
- 65 %
90 %
80 %
70 %
60 %
50 %
40 %
30 %
- 5 %
- 10 %
- 15 %
- 25 %
- 35 %
- 10 %
- 20 %
- 30 %
- 40 %
- 50 %
4 kHz 8 kHz 12 kHz 16 kHz
40°C (104°F) mounting types A, B and C
50°C (122°F) mounting type C
50°C (122°F) mounting types A and B
60°C (140°F) mounting type C
60°C (140°F) mounting types A and B
Switching frequency
I/In

16 BBV46391 04/2009
Mounting (continued)
Installing the EMC plates
EMC mounting plate: Supplied with the drive
Fix the EMC equipotentiality mounting plate to the holes in the ATV312 heatsink using the 2 screws supplied, as shown in the drawings
below.
Bus voltage measurement procedure
The DC bus voltage can exceed 933 Vdc. Use a properly rated voltage-sensing device when performing this procedure. To measure the
DC bus voltage:
1. Disconnect all power.
2. Wait 15 minutes to allow the DC bus to discharge.
3. Measure the voltage of the DC bus between the PA/+ and PC/– terminals to ensure that the voltage is less than 42 Vdc.
4. If the DC bus capacitors do not discharge completely, contact your local Schneider Electric representative. Do not repair or operate the
drive.
ATV312H Size ATV312H Size
018M3, 037M3 1 U22M2, U30M3, U40M3,
U22N4, U30N4, U40N4,
U22S6, U40S6
7
055M3, 075M3 2
018M2, 037M2 3 U55M3, U75M3,
U55N4, U75N4,
U55S6, U75S6
8
055M2, 075M2 4
U11M3, U15M3 5 D11M3, D15M3,
D11N4, D15N4,
D11S6, D15S6
9
U11M2, U15M2, U22M3,
037N4, 055N4, 075N4, U11N4, U15N4,
075S6, U15S6
6
DANGER
HAZARD OF ELECTRIC SHOCK, EXPLOSION, OR ARC FLASH
Read and understand the precautions in “Before you begin” page 5 before performing this procedure.
Failure to follow these instructions will result in death or serious injury.
Screws supplied:
4 x M4 screws for fixing the EMC clamps (clamps not supplied)
1 x M5 screw for ground
2
screws
Size 1 - 4 Size 5 - 7 Size 9
Size 8
2
screws
2
screws
2
screws

BBV46391 04/2009 17
Wiring
Recommendations
Power and circuit protection
The drive must be grounded to conform with the regulations concerning high leakage currents (over 3.5 mA).
Where local and national codes require upstream protection by means of a residual current device, use a type A device for single-phase
drives and a type B device for three-phase drives as defined in the IEC Standard 60755.
Choose a suitable model integrating:
• High frequency current filtering,
• A time delay that helps to prevent tripping caused by the load from stray capacitance on power-up.
The time delay is not possible for 30 mA devices; in this case, choose devices with immunity against nuisance tripping.
If the installation includes several drives, provide one "residual current device" per drive.
Keep the power cables separate from circuits in the installation with low-level signals (detectors, PLCs, measuring apparatus, video,
telephone).
If you are using cables longer than 50 m (164 ft) between the drive and the motor, add output filters (please refer to the catalogue).
Control
Keep the control circuits away from the power cables. For control and speed reference circuits, we recommend using shielded twisted
cables with a pitch of between 25 and 50 mm (1 and 2 in.), connecting the shielding to ground at each end.
Equipment Grounding
Ground the drive according to local and national code requirements. A minimum wire size of 10 mm² (6 AWG) may be required to meet
standards limiting leakage current.
DANGER
HAZARD OF ELECTRIC SHOCK, EXPLOSION, OR ARC FLASH
• The drive panel must be properly grounded before power is applied.
• Use the provided ground connecting point as shown in the figure below.
Failure to follow these instructions will result in death or serious injury.
WARNING
IMPROPER WIRING PRACTICES
• The ATV312 drive will be damaged if input line voltage is applied to the output terminals (U/T1,V/T2,W/T3).
• Check the power connections before energizing the ATV312 drive.
• If replacing another drive, verify that all wiring connections to the ATV312 drive comply with wiring instructions in this manual page 29.
Failure to follow these instructions can result in death, serious injury, or equipment damage.
WARNING
INADEQUATE OVERCURRENT PROTECTION
• Overcurrent protective devices must be properly coordinated.
• The Canadian Electrical Code and the National Electrical Code require branch circuit protection. Use the fuses recommended in the
installation manual.
• Do not connect the drive to a power feeder whose short-circuit capacity exceeds the drive short-circuit current rating listed in this
manual page 29.
Failure to follow these instructions can result in death, serious injury, or equipment damage.
• Ensure that the resistance of the ground is one ohm or less.
• When grounding several drives, you must connect each one directly, as shown in the figure
to the left.
• Do not loop the ground cables or connect them in series.

18 BBV46391 04/2009
Wiring (continued)
General wiring diagram
(1)Line choke, if used (single phase or 3-phase)
(2)Fault relay contacts, for remote indication of the drive status
(3)If a braking resistor is connected, set [Dec ramp adapt.] (brA) parameter to yes (refer to the progamming manual).
Note 1: Use interference suppressors on all inductive circuits near the drive or coupled to the same circuit (relays, contactors,
solenoid valves, etc).
Note 2: This diagram is for the standard ATV312 products. Optional communication cards may change the control wiring of the product.
Please see the associated documentation for the option cards for details.
Choice of associated components:
Please refer to the catalogue.
U / T1
V / T2
W / T3
P0
PA / +
+10
AI1
COM
AI3
R / L1
U1
W1
V1
M
3 a
S / L2
T / L3
R1A
R1C
R1B
LI1
CLI
R2A
R2C
LI2
LI3
LI4
LI5
LI6
24V
AI2
AOV
AOC
(2)
(1)
(1)
PB
PC / -
R / L1
S / L2
COM
A0C
(3)
3-phase supply
X - Y mA
Single-phase supply
ATV312ppppM2
ATV312ppppM3/N4/S6
Braking resistor,
if used
0 - 10 V
24 V relay
or
24 V PLC input
or
LED
Using the analog output as a
logic output
Reference
potentiometer

BBV46391 04/2009 19
Wiring (continued)
Logic input switch
This switch (1) assigns the link to 0V, 24 V or "floating":
(1)See page 24 to locate the switch on the terminal board.
DANGER
UNINTENDED EQUIPMENT OPERATION
• Prevent accidental grounding of logic inputs configured for sink logic. Accidental grounding can result in unintended activation of drive
functions.
• Protect the signal conductors against damage that could result in unintentional conductor grounding.
• Follow NFPA 79 and EN 60204 guidelines for proper control circuit grounding practices.
Failure to follow these instructions will result in death or serious injury.
CLI
SINK
SOURCE
0V
LI1COM CLI
24V
ATV312pppp
PLC
24V
LI1 COM
ATV312pppp
24V
0V
LI1COM CLI
ATV312pppp
0V
LI1 24V
ATV312pppp
Using volt-free contacts
Switch in «Sink»
position
Using PLC transistor output
Switch in «Source» position
(factory setting)
Switch in CLI position

20 BBV46391 04/2009
Wiring (continued)
Power terminals
Access to the power terminals
To access the terminals, open the cover as shown in the example below.
DANGER
HAZARD OF ELECTRIC SHOCK, EXPLOSION, OR ARC FLASH.
Replace the cover plate on the terminals and close the door before applying power.
Failure to follow these instructions will result in death or serious injury.

BBV46391 04/2009 21
Wiring (continued)
Functions of the power terminals
Arrangement and caracteristics of the power terminals
(1)The value in bold corresponds to the minimum wire gauge to permit secureness.
(2)75°C (167 °F) copper cable (minimum wire size for rated use).
Terminal Function For Altivar 312
tGround terminal All ratings
R/L1 - S/L2 Power supply ATV312ppppM2
R/L1 - S/L2 - T/L3 ATV312ppppM3
ATV312ppppN4
ATV312ppppS6
PO DC bus + polarity All ratings
PA/+ Output to braking resistor (+ polarity) All ratings
PB Output to braking resistor All ratings
PC/- DC bus - polarity All ratings
U/T1 - V/T2 - W/T3 Outputs to the motor All ratings
CAUTION
RISK OF DAMAGE TO THE DRIVE
• Never remove the link between PO and PA/+.
• The PO and PA/+ terminal screws must always be fully tightened as a high current flows through the link.
Failure to follow these instructions can result in equipment damage
T/L3R/L1 S/L2
P0 PA/ + PB PC/- U/T1 V/T2 W/T3
R/L1 S/L2
P0 PA/ + PB PC/- U/T1 V/T2 W/T3
ATV312H
Applicable
wire size (1)
Recommended
wire size (2)
Tightening
torque
mm² (AWG) mm² (AWG) N·m (lb.in)
018M3, 037M3
055M3, 075M3
2.5
(14)
2.5
(14)
0.8
(7.1)
ATV312H
Applicable
wire size (1)
Recommended
wire size (2)
Tightening
torque
mm² (AWG) mm² (AWG) N·m (lb.in)
018M2, 037M2
055M2, 075M2
2.5
(14)
2.5
(14)
0.8
(7.1)
ATV312H 018M3 ... 075M3
ATV312H 018M2 ...075M2

22 BBV46391 04/2009
Wiring (continued)
(1)The value in bold corresponds to the minimum wire gauge to permit secureness.
(2)75°C (167 °F) copper cable (minimum wire size for rated use).
ATV312H
Applicable
wire size (1)
Recommended
wire size (2)
Tightening
torque
mm² (AWG) mm² (AWG) N·m (lb.in)
U11M3, U15M3
037N4, 055N4,
075N4, U11N4,
U15N4
075S6, U15S6
2.5 to 6
(14 to 10)
2.5
(14)
0.8
(7.1)
U22M3 2.5 to 6
(12 to 10)
3.5
(12)
1.2
(10.7)
U30M3, U40M3 6
(10)
6
(10)
1.2
(10.7)
U22N4, U30N4
U22S6, U40S6
2.5 to 6
(14 to 10)
2.5
(14)
1.2
(10.7)
U40N4 4 to 6
(12 to 10)
4
(12)
1.2
(10.7)
R/L1 S/L2 T/L3
P0 PA/ + PB PC/- U/T1 V/T2 W/T3
ATV312H U11M3 ...U40M3
ATV312H 037N4 ... U40N4
ATV312H 075S6 ... U40S6
R/L1 S/L2
P0 PA/ + PB PC/- U/T1 V/T2 W/T3
ATV312H U11M2 ... U22M2
ATV312H
Applicable
wire size (1)
Recommended
wire size (2)
Tightening
torque
mm² (AWG) mm² (AWG) N·m (lb.in)
U11M2, U15M2 2.5 to 6
(12 to 10)
3.5
(12)
1.2
(10.7)
U22M2 4 to 6
(12 to 10)
4
(12)
1.2
(10.7)
R/L1 S/L2 T/L3 P0 PA/+ PB PC/- U/T1 V/T2 W/T3
ATV312H U55M3, U75M3
ATV312H U55N4, U75N4
ATV312H U55S6, U75S6 ATV312H
Applicable
wire size (1)
Recommended
wire size (2)
Tightening
torque
mm² (AWG) mm² (AWG) N·m (lb.in)
U55M3 10 to 16
(8 to 6)
10
(8)
2.5
(22.3)
U75M3 16
(6)
16
(6)
2.5
(22.3)
U55N4, U55S6,
U75S6
6 to 16
(10 to 6)
6
(10)
2.5
(22.3)
U75N4 10 to 16
(8 to 6)
16
(8)
2.5
(22.3)

BBV46391 04/2009 23
Wiring (continued)
(1)The value in bold corresponds to the minimum wire gauge to permit secureness.
(2)75°C (167 °F) copper cable (minimum wire size for rated use).
R/L1 S/L2 T/L3 P0 PA/ + PB PC/- U/T1 V/T2 W/T3
ATV312H D11M3, D15M3
ATV312H D11N4, D15N4
ATV312H D11S6, D15S6 ATV312H
Applicable
wire size (1)
Recommended
wire size (2)
Tightening
torque
mm² (AWG) mm² (AWG) N·m (lb.in)
D11M3 10 to 25
(8 to 4)
25
(4)
4.5
(40.1)
D15M3, D15N4 10 to 25
(8 to 4)
16
(6)
4.5
(40.1)
D11N4, D11S6,
D15S6
10 to 25
(8 to 4) 10
(8)
4.5
(40.1)

24 BBV46391 04/2009
Wiring (continued)
Control terminals
Access to the control terminals
Arrangement of the control terminals
(1) The value in bold corresponds to the minimum wire gauge to permit secureness.
(2) Recommended to maximum value.
DANGER
UNINTENDED EQUIPMENT OPERATION
• Do not plug or unplug the terminal board while drive is powered.
• Check the tightening of the fixing screw after any manipulation on the terminal board.
Failure to follow these instructions will result in death or serious injury.
DANGER
HAZARD OF ELECTRIC SHOCK, EXPLOSION, OR ARC FLASH
Do not touch the terminal board before :
• removing power on the drive,
• removing any voltage on input and output terminals.
Failure to follow these instructions will result in death or serious injury.
ATV312 Control terminals Applicable wire size (1)
mm² (AWG)
Tightening torque (2)
N·m (lb.in)
R1A, R1B, R1C, R2A, R2C 0.75 to 2.5 (18 to 14) 0.5 to 0.6 (4.4 to 5.3)
Other terminals 0.14 to 2.5 (26 to 16)
24V
LI1
LI2
LI3
LI4
LI5
LI6
CLI
COM
AI1
Source
CLI
SINK
RJ45
10V
AI2
R1B
R1A
R1C
R2A
R2C
AI3
COM
AOV
AOC
Logic input
configuration
switch
RJ45
connector
Control terminals
I/O terminal card can be removed to install in place
optional communication boards. Please refer to
installation and wiring details supplied with each
board.

BBV46391 04/2009 25
Wiring (continued)
Characteristics and functions of the control terminals
Terminal Function Electrical characteristics
R1A
R1B
R1C
Common point C/O contact (R1C) of
programmable relay R1
• Min. switching capacity: 10 mA for 5 V c
• Max. switching capacity on resistive load (cos ϕ = 1 and L/R = 0 ms):
5 A for 250 V a and 30 V c
• Max. switching capacity on inductive load (cos ϕ = 0.4 and L/R = 7 ms):
1.5 A for 250 V a and 30 V c
• Sampling time 8 ms
• Service life: 100,000 operations at max. switching power
1,000,000 operations at min. switching power
R2A
R2C
N/O contact of programmable relay
R2
COM Analog I/O common 0 V
AI1 Analog input voltage Analog input 0 + 10 V (max. safe voltage 30 V)
• Impedance 30 kΩ
• Resolution 0.01 V, 10-bit converter
• Precision ± 4.3%, linearity ± 0.2%, of max. value
• Sampling time 8 ms
• Operation with shielded cable 100 m max.
10 V Power supply for reference
potentiometer
+10 V (+ 8% - 0%), 10 mA max, protected against short-circuits and overloads
AI2 Analog input voltage Bipolar analog input 0 ± 10 V (max. safe voltage ± 30 V)
The + or - polarity of the voltage on AI2 affects the direction of the setpoint
and therefore the direction of operation.
• Impedance 30 kΩ
• Resolution 0.01 V, 10-bit + sign converter
• Precision ± 4.3%, linearity ± 0.2%, of max. value
• Sampling time 8 ms
• Operation with shielded cable 100 m max.
AI3 Analog input current Analog input X - Y mA. X and Y can be programmed from 0 to 20 mA
• Impedance 250 Ω
• Resolution 0.02 mA, 10-bit converter
• Precision ± 4.3%, linearity ± 0.2%, of max. value
• Sampling time 8 ms
COM Analog I/O common 0 V
AOV
AOC
Analog output voltage AOV
or
Analog output current AOC
or
Logic output voltage AOC
AOV or AOC can be assigned
(either, but not both)
Analog output 0 to 10 V, min. load impedance 470 Ω
or
Analog output X - Y mA. X and Y can be programmed from 0 to 20 mA,
max. load impedance 800 Ω
• Resolution 8 bits (1)
• Precision ± 1% (1)
• Linearity ± 0.2% (1)
• Sampling time 8 ms
This analog output can be configured as a 24 V logic output on AOC, min. load
impedance 1.2 kΩ.
(1) Characteristics of digital/analog converter.
24 V Logic input power supply + 24 V protected against short-circuits and overloads, min. 19 V, max. 30 V
Max. customer current available 100 mA
LI1
LI2
LI3
LI4
LI5
LI6
Logic inputs Programmable logic inputs
• + 24 V power supply (max. 30 V)
• Impedance 3.5 kΩ
• State 0 if < 5 V, state 1 if > 11 V (voltage difference between LI- and CLI)
• Sampling time 4 ms
CLI Logic input common See page 19.
RJ45 Communication port Connection for SoMove software, Modbus and CANopen network, remote display,
configuration loader tools,

26 BBV46391 04/2009
Wiring (continued)
Electromagnetic compatibility (EMC)
IMPORTANT: The high frequency equipotential ground connection between the drive, motor, and cable shielding does not eliminate the
need to connect the ground (PE) conductors (green-yellow) to the appropriate terminals on each unit.
Principle and precautions
• Grounds between the drive, motor, and cable shielding must have high frequency equipotentiality.
• When using shielded cable for the motor, use a 4-conductor cable so that one wire will be the ground connection between the motor
and the drive. Size of the ground conductor must be selected in compliance with local and national codes. The shield can then be
grounded at both ends. Metal ducting or conduit can be used for part or all of the shielding length, provided there is no break in
continuity.
• When using shielded cable for Dynamic Brake (DB) resistors, use a 3-conductor cable so that one wire will be the ground connection
between the DB resistor assembly and the drive. The size of the ground conductor must be selected in compliance with local and
national codes. The shield can then be grounded at both ends. Metal ducting or conduit can be used for part or all of the shielding
length, provided there is no break in continuity.
• When using shielded cable for control signals, if the cable is connecting equipment that is close together and the grounds are bonded
together, then both ends of the shield can be grounded. If the cable is connected to equipment that may have a different ground
potential, then ground the shield at one end only to prevent large currents from flowing in the shield. The shield on the ungrounded
end may be tied to ground with a capacitor (for example: 10 nF, 100 V or higher) in order to provide a path for the higher frequency
noise. Keep the control circuits away from the power circuits. For control and speed reference circuits, we recommend using shielded
twisted cables with a pitch of between 25 and 50 mm (1 and 2 in.) Keep the control circuits away from the power circuits. For control
and speed reference circuits, we recommend using shielded twisted cables with a pitch of between 25 and 50 mm (1 and 2 in.)
• Ensure maximum separation between the power supply cable (line supply) and the motor cable.
• The motor cables must be at least 0.5 m (20 in.) long.
• Do not use surge arresters or power factor correction capacitors on the variable speed drive output.
• If using an additional input filter, it should be mounted as closed as possible to the drive and connected directly to the line supply via
an unshielded cable. Link 1 on the drive is via the filter output cable.
• For installation of the optional EMC plate and instructions for meeting IEC 61800-3 standard, refer to the section entitled “Installing
the EMC plates” and the instructions provided with the EMC plates.
DANGER
HAZARD OF ELECTRIC SHOCK, EXPLOSION OR ARC FLASH
• Do not expose cable shielding except where connected to ground at the metal cable glands and underneath the grounding clamps.
• Ensure that there is no risk of the shielding coming into contact with live components.
Failure to follow these instructions will result in death or serious injury.

BBV46391 04/2009 27
Wiring (continued)
Optional EMC plate installation diagram and instructions (examples)
Installation depends on the drive size. The table below gives the size according to the reference.
1. EMC plate supplied with the drive, to be installed as indicated on the diagram.
2. Altivar 312
3. Non-shielded power supply wires or cable
4. Non-shielded wires for relay contacts
5. Attach and ground the shielding of cables 6, 7 and 8 as close as possible to the drive:
- Strip the shielding.
- Use stainless steel cable clamps of an appropriate size on the parts from which the shielding has been stripped, to attach them to the
plate 1.
The shielding must be clamped tightly to the metal plate to improve electrical contact.
6. Shielded cable for motor connection with shielding connected to ground at both ends.
The shielding must be continuous and intermediate terminals must be in EMC shielded metal boxes.
For 0.18 to 1.5 kW drives, if the switching frequency is higher than 12 kHz, use cables with low linear capacitance: max. 130 pF
(picoFarads) per meter.
7. Shielded cable for connecting the control/signalling wiring.
For applications requiring several conductors, use cables with a small cross-section (0.5 mm2, 20 AWG).
The shielding must be connected to ground at both ends. The shielding must be continuous and intermediate terminals must be in EMC
shielded metal boxes.
8. Shielded cable for connecting braking resistor (if used).
The shielding must be continuous and intermediate terminals must be in EMC shielded metal boxes.
Note:
• If using an additional input filter, it should be mounted under the drive and connected directly to the line supply via an unshielded
cable. Link 3 on the drive is then via the filter output cable.
• The HF equipotential ground connection between the drive, motor and cable shielding does not remove the need to connect the PE
ground conductors (green-yellow) to the appropriate terminals on each unit.
Size 1 Size 2 Size 3 Size 4 Size 5 Size 6 Size 7 Size 8 Size 9
H018M3,
H037M3
H055M3,
H075M3
H018M2,
H037M2
H055M2,
H075M2
HU11M3,
HU15M3
HU11M2,
HU15M2,
HU22M3,
H037N4,
H055N4,
H075N4,
HU11N4,
HU15N4,
H075S6,
HU15S6
HU22M2,
HU30M3,
HU40M3,
HU22N4,
HU30N4,
HU40N4,
HU22S6,
HU40S6
HU55M3,
HU75M3,
HU55N4,
HU75N4,
HU55S6,
HU75S6
HD11M3,
HD15M3,
HD11N4,
HD15N4,
HD11S6,
HD15S6
Sizes 1 to 4 Size 5 to 7 Size 8 Size 9

28 BBV46391 04/2009
Wiring (continued)
Operation on an IT system
IT system: Isolated or impedance earthed neutral.
ATV312ppppM2 and ATV312ppppN4 drives have a built-in EMC filter. As a result they exhibit leakage current to ground. If the leakage
current creates compatibility problems with your installation (residual current device or other), then you can reduce the leakage current by
opening the IT jumper. In this configuration EMC compliance is not guaranteed.
Use a permanent insulation monitor compatible with non-linear loads (for example Merlin Gerin type XM200).
ATV312H 018M2 to U22M2 and ATV312H 037N4 to U40N4:
Pull out the jumper on the left of the ground terminal as illustrated below.
ATV312H U55N4 to D15N4:
Move the cable tag on the top left of the power terminals as illustrated below (example: ATV312HU55N4):
Normal
(filter connected)
IT system
(filter
disconnected)
Normal
(filter connected)
(factory setting)
IT system
(filter disconnected)

BBV46391 04/2009 29
Check list
Read carefully the safety information in programming, installation, simplified manuals and the catalogue. Before starting up the drive, please
check the following points regarding mechanical and electrical installations, then use and run the drive.
For complete documentation, refer to www.schneider-electric.com.
1. Mechanical installation
• For drive mounting types and recommendations on the ambient temperature (see the Mounting instructions on page 14).
• Mount the drive vertically as specified (see the Mounting instructions on page 14).
• The use of the drive must be in agreement with the environments defined by the standard 60721-3-3 and according to the levels
defined in the catalogue.
• Mount the options required for your application (see catalogue).
2. Electrical installation
• Connect the drive to the ground (see Equipment Grounding on page 17).
• Ensure that the input power voltage corresponds to the drive nominal voltage and connect the line supply as shown on the drawing
on page 18.
• Ensure to use appropriate input power fuses and circuit breaker.
• Wire the control terminals as required (see Control terminals on page 24). Separate the power cable and the control cable according
to EMC compatibility rules.
• The range ATV312ppppM2 and ATV312ppppN4 integrates EMC filter. The leakage current can be reduced using the IT jumper as
explained in the paragraph Operating on an IT system on page 28.
• Ensure that motor connections correspond to the voltage (star, delta).
3. Use and run the drive (see programming manual)
• Start the drive and you will see [Standard mot. freq] (bFr) at the first power on. Check that the frequency defined by the frequency
bFr (the factory setting is 50 Hz) is in accordance with the frequency of the motor.
• On first power-up parameters [Ref.1 channel] (Fr1) and [2/3 wire control] (tCC) appear after bFr. These parameters should be set
if you want to control the drive locally, see page «How to control the drive locally» in the programming manual.
• On subsequent power-up, rdY will be displayed on the HMI.
• The [Restore config.] (FCS) function, permits you to reset the drive with factory settings.

30 BBV46391 04/2009
Maintenance
Servicing
The Altivar 312 does not require any preventive maintenance. However, it is advisable to perform the following checks regularly:
• The condition and tightness of connections.
• Ensure that the temperature around the unit remains at an acceptable level and that ventilation is effective. Average service life of
fans: 10 years.
• Remove any dust from the drive.
• Ensure proper fan operation.
• Physical damage to covers.
Assistance with maintenance, detected fault display
If a problem arises during setup or operation, ensure that the recommendations relating to the environment, mounting and connections have
been observed.
The first fault detected is stored and displayed, flashing, on the screen: the drive locks and the status relay (R1) contact opens.
Clearing the detected fault
Disconnect the drive power supply in the event of a non-resettable fault.
Wait for the display to go off completely.
Find the cause of the detected fault and correct it.
Restore power to the drive.
The detected fault will no longer be present if it's cause has been corrected.
In the event of a non resettable detected fault:
- Remove/cut the power to the drive.
- WAIT 15 MINUTES to allow the DC bus capacitors to discharge. Then follow the “Bus Voltage Measurement Procedure” page 16
to verify that the DC voltage is less than 42 V. The drive LEDs are not indicators of the absence of DC bus voltage.
- Find and correct the detected fault.
- Restore power to the drive to confirm the detected fault has been rectified.
Certain detected faults can be programmed for automatic restart after the cause has disappeared.
These detected faults can also be reset by cycling power to the drive or by means of a logic input or control bit.
Display menu
Use the display menu to show the status of the drive and it's current values as an aid for finding the causes of detected faults.
Spares and repairs
Serviceable product: replacement of spares following the catalog.
Procedure after a long time storage
WARNING
RISK OF EXPLOSION AT THE POWER UP
The capacitors after a long time storage can have issues. Following a storage time between 2 and 3 years:
• Use one AC supply variable connected between L1, L2 and L3
• Increase AC supply voltage to have:
- 25% of rated voltage during 30mn
- 50% of rated voltage during 30mn
- 75% of rated voltage during 30mn
- 100% of rated voltage during 30mn
Failure to follow these instructions can result in death, serious injury, or equipment damage.

BBV46391 04/2009 31
Short-circuit rating and branch circuit protection
Recommended fuse ratings for UL and CSA requirements
Suitable For Use On A Circuit Capable Of Delivering Not More Than ___X____ rms Symmetrical Amperes, ___Y____ Volts Maximum,
When Protected by __Z 1____ with a Maximum rating of__Z 2___.
(1) Input withstand rating is that for which the product has been designed thermally. Installation on a supply greater than this level will require
additional inductance to satisfy this level.
(2) Output interrupt rating relies on Integral solid state short circuit protection. This does not provide branch circuit protection. Branch circuit
protection must be provided in accordance with the National Electrical Code and any additional local codes. This is dependant on the type
of installation.
(3) Enclosure Containment Rating is the maximum input short-circuit current at the drive input terminals with the specific branch Circuit
Protection present for which any internal component breakdown, will not create a shock, flame, fire or expulsion hazard outside a specific
enclosure structure. The various combinations are indicated in supplementary documents.
Reference Voltage
(Y)
Input
withstand
rating (1)
Output
interrupt
rating (X)(2)
Enclosure
Containment
rating (3)
(Type 1)
Branch
Circuit
protection
(Z1)
Rating
(Z2)
ATV312H018M2 200-240 1 22 Class J Fuse 6
ATV312H037M2 200-240 1 22 Class J Fuse 10
ATV312H055M2 200-240 1 22 Class J Fuse 10
ATV312H075M2 200-240 1 22 Class J Fuse 15
ATV312HU11M2 200-240 1 22 Class J Fuse 20
ATV312HU15M2 200-240 1 22 Class J Fuse 20
ATV312HU22M2 200-240 1 22 Class J Fuse 30
ATV312H018M3X 200-240 5 22 22 Class J Fuse 3
ATV312H037M3X 200-240 5 22 22 Class J Fuse 6
ATV312H055M3X 200-240 5 22 22 Class J Fuse 10
ATV312H075M3X 200-240 5 22 22 Class J Fuse 10
ATV312HU11M3X 200-240 5 22 22 Class J Fuse 15
ATV312HU15M3X 200-240 5 22 22 Class J Fuse 15
ATV312HU22M3X 200-240 5 22 22 Class J Fuse 20
ATV312HU30M3X 200-240 5 22 22 Class J Fuse 25
ATV312HU40M3X 200-240 5 22 22 Class J Fuse 35
ATV312HU55M3X 200-240 22 22 22 Class J Fuse 50
ATV312HU75M3X 200-240 22 22 22 Class J Fuse 60
ATV312HD11M3X 200-240 22 22 22 Class J Fuse 80
ATV312HD15M3X 200-240 22 22 22 Class J Fuse 110
ATV312H037N4 380-500 5 22 100 Class J Fuse 3
ATV312H055N4 380-500 5 22 100 Class J Fuse 6
ATV312H075N4 380-500 5 22 100 Class J Fuse 6
ATV312HU11N4 380-500 5 22 100 Class J Fuse 10
ATV312HU15N4 380-500 5 22 100 Class J Fuse 10
ATV312HU22N4 380-500 5 22 100 Class J Fuse 15
ATV312HU30N4 380-500 5 22 100 Class J Fuse 15
ATV312HU40N4 380-500 5 22 100 Class J Fuse 20
ATV312HU55N4 380-500 22 22 100 Class J Fuse 30
ATV312HU75N4 380-500 22 22 100 Class J Fuse 35
ATV312HD11N4 380-500 22 22 100 Class J Fuse 50
ATV312HD15N4 380-500 22 22 100 Class J Fuse 70
ATV312H075S6X 575-600 5 22 22 Class J Fuse 6
ATV312HU15S6X 575-600 5 22 22 Class J Fuse 6
ATV312HU22S6X 575-600 5 22 22 Class J Fuse 10
ATV312HU40S6X 575-600 5 22 22 Class J Fuse 15
ATV312HU55S6X 575-600 22 22 22 Class J Fuse 20
ATV312HU75S6X 575-600 22 22 22 Class J Fuse 25
ATV312HD11S6X 575-600 22 22 22 Class J Fuse 35
ATV312HD15S6X 575-600 22 22 22 Class J Fuse 45
BBV46391
ATV312_installation_manual_V1
04/2009