PROLINE Modular Enclosure Systems; Industrial Packages; Frames; Frame Accessories; Cable Entry C 156301 Catalog
2016-08-17
: Pdf 156301-Catalog 156301-Catalog B3 unilog
Open the PDF directly: View PDF
.
Page Count: 120 [warning: Documents this large are best viewed by clicking the View PDF Link!]
- PROLINE™ Modular Enclosure Systems
- PROLINE™ Modular Enclosures Product Overview
- PROLINE™ Industrial Packages
- PROLINE™ Frames
- PROLINE™ Frame Accessories
- PROLINE™ Cable Entry Cabinets and Accessories
- PROLINE™ External Components for Modular Enclosures
- PROLINE™ Doors, Covers and Sides
- PROLINE™ Barrier Panels, Side Door Adapters
- PROLINE™ Door Accessories
- PROLINE™ Tops and Bases
- Solid Tops
- Vented Top with Integral Fan Tray
- Pagoda Tops
- Pagoda Exhaust Vents
- High-Performance Pagoda Exhaust Vent
- Top with Cutout for High-Performance Pagoda Exhaust Vent
- Top-Mount Air Conditioner
- Double-Bay Air Conditioner Top
- Support Bracket Kit
- 0-mm Solid Base
- 100-mm Solid Base
- 100-mm Solid Base Joining, Side-to-Side
- Cable Entry Gland Plate
- Frame Feet
- Levelers
- PROLINE™ Frame Floor-Mounting Bracket
- 100-mm Plinth Base
- 200-mm Plinth Base
- Plinth Base Stacking Kit
- Vented Plinth Base Covers
- Replacement Filter Kit for Filtered Gland Plate
- Gland Plates
- Mobile Base Leveling Kit
- Mobile Base
- PROLINE™ Transportation Base
- Transportation Base Joining, Side-to-Side
- Caster Kit
- PROLINE™ Internal Components for Modular Enclosures
- Panel and Grid Mounting System
- Swing-Out Rack Frames and Accessories
- PROLINE™ Shelves, Rails and Lighting Packages
- Rack-Mount Angles and Accessories
- PROLINE™ Rack Angles Overview
- 19-in. Rack Angles
- 23-in. Rack Angles
- 24-in. Rack Angles
- Metric Rack Angles
- Rack Angle Adapter Bracket
- Frame Accessory Bracket
- Pull-Out Shelf
- Pull-Out Shelf Lock
- Fixed Shelf
- Guides
- Filler Panel for Rack Angles
- Screw Package
- Cage Nut Package
- Rack Panels
- Adjustable Rack-Mounting Rails
- Frame-Reducing Brackets for Frames or Grid Straps
- Slides
- Rack-Angle Mounted Drawer
- Writing Surface
- PROLINE-PC Modular Enclosures and Accessories
- PROLINE™-PC, Type 12
- Selection Matrix
- Frames
- Covers for Upper Front
- Doors for Upper Front
- Window Doors for Upper Front
- Covers for Lower Front
- Doors for Lower Front
- Doors with Windows for Lower Front
- Keyboard Shelf
- Keyboard Compartment
- Consolet Compartment
- Keyboard Shelves with Integrated Keyboard/Mouse
- 20-Degree Control Compartment
- Access Cover
- Writing Desk
- Pencil Tray
- PROLINE-SY Modular Enclosure System
- PROLINE™ Gold Series Computer Workstation Enclosure System
- PROLINE™ Gold Series Desk Consoles and Accessories

EQUIPMENT PROTECTIONSUBJECT TO CHANGE WITHOUT NOTICE
MODULAR ENCLOSURE SYSTEMS426
6
Modular Systems
CHAPTER6
CHAPTER CONTENTS
PROLINE™ MODULAR ENCLOSURE SYSTEMS
PROLINE™ Modular Enclosures Product Overview ....................428
PROLINE™ Modular Enclosures Product Description ..................429
PROLINE™ INDUSTRIAL PACKAGES
PROLINE™ Industrial Packages, Type 12 ...........................430
PROLINE™ FRAMES
PROLINE™ Frames ............................................432
Single-Bay Frames ............................................433
Double-Bay Frames ...........................................436
EMC Frames .................................................438
PROLINE™ FRAME ACCESSORIES
L Joining Bracket .............................................440
Frame Joining Kits ............................................440
Stainless Steel Legs ...........................................440
PROLINE™ Fastener Packages ...................................441
Touch-Up Paint ...............................................441
Lifting Eyes ..................................................441
Lifting Angles ................................................441
PROLINE™ CABLE ENTRY CABINETS AND ACCESSORIES
Cable Entry Cabinets ..........................................442
Closure Plates ...............................................443
Closure Plate Adapters for Cutouts ...............................443
PROLINE™ EXTERNAL COMPONENTS FOR MODULAR ENCLOSURES
PROLINE™ External Components Product Overview ...................444
Selection Matrix: Doors, Covers and Sides ..........................446
Selection Matrix: Door Accessories ...............................450
Selection Matrix: Tops and Bases .................................452
PROLINE™ DOORS, COVERS AND SIDES
Door Gasketing, Shielding and Door Bars Overview ...................456
Solid Doors ..................................................457
Solid Covers .................................................458
Solid Sides ..................................................459
Window Doors ................................................460
Dress Frame .................................................461
Disconnect Door for PROLINE™ Enclosures .........................462
Electrical Interlock ............................................464
Mechanical Interlock ..........................................465
PROLINE™ BARRIER PANELS, SIDE DOOR ADAPTERS
Barrier Panels ................................................466
Side Door Adapters ............................................467
PROLINE™ DOOR ACCESSORIES
L Handle ....................................................468
Flush Swing Handles ..........................................468
Flush Bezels .................................................468
Key Inserts ..................................................469
Padlock Kit ..................................................469
DIN Lock Inserts (for DIN Profile Handle Only) .......................469
Small Flush Swing Handle ......................................469
Folding Shelf ................................................469
Door Bar Grid Straps ...........................................470
180-Degree Hinge Kit ..........................................470
Door Stop Kit ................................................470
Door Support Roller Kit .........................................470
Thermoplastic Data Pocket .....................................471
Steel Data Pocket .............................................471
PROLINE™ TOPS AND BASES
Solid Tops ...................................................472
Vented Top with Integral Fan Tray .................................473
Pagoda Tops .................................................474
Pagoda Exhaust Vents .........................................475
High-Performance Pagoda Exhaust Vent ...........................475
Top with Cutout for High-Performance Pagoda Exhaust Vent ............476
Top-Mount Air Conditioner ......................................477
Double-Bay Air Conditioner Top ..................................478
Support Bracket Kit ...........................................478
0-mm Solid Base .............................................479
100-mm Solid Base. . . . . . . . . . . . . . . . . . . . . . . . . . . . . . . . . . . . . . . . . . . .480
100-mm Solid Base Joining, Side-to-Side ..........................480
Cable Entry Gland Plate ........................................481
Frame Feet ..................................................481
Levelers ....................................................481
PROLINE™ Frame Floor-Mounting Bracket ..........................481
100-mm Plinth Base ...........................................482
200-mm Plinth Base ...........................................483
Plinth Base Stacking Kit ........................................484
Vented Plinth Base Covers ......................................484
Replacement Filter Kit for Filtered Gland Plate ......................484
Gland Plates .................................................485
Mobile Base Leveling Kit .......................................486
Mobile Base .................................................486
PROLINE™ Transportation Base ..................................487
Transportation Base Joining, Side-to-Side ..........................487
Caster Kit ...................................................488
PROLINE™ INTERNAL COMPONENTS FOR MODULAR ENCLOSURES
PROLINE™ Internal Components Product Overview ...................490
Selection Matrix: Panel and Grid Mounting .........................492
Selection Matrix: Rack Mounting .................................494
PANEL AND GRID MOUNTING SYSTEM
Full Subpanel ................................................496

EQUIPMENT PROTECTION
MODULAR ENCLOSURE SYSTEMS 427
6
Joining Subpanel .............................................497
Partial Subpanel ..............................................498
Side-Mount Subpanel ..........................................499
Panel Support Brace ...........................................500
Swing-Out Panel ..............................................500
PROLINE™ Grounding Kit .......................................501
Transformer Rails .............................................501
Grounding Bar System .........................................501
Grid System .................................................502
Center Upright ...............................................502
Full-Height Vertical Grid Straps ..................................503
PROLINE™ Fastener Packages ...................................503
SWINGOUT RACK FRAMES AND ACCESSORIES
Partial Swing-Out Rack Frame ...................................504
Heavy-Duty Swing-Out Rack Frame ...............................504
170-Degree Hinge Kit ..........................................506
Swing-Out Guides .............................................506
Stop Arm Kit .................................................507
Filler Panel Kit ...............................................507
PROLINE™ SHELVES, RAILS AND LIGHTING PACKAGES
Frame Pull-Out Shelf ..........................................508
Frame Shelf .................................................508
Door-Activated Light Switch Kit ..................................509
Printer Shelf .................................................509
Wire Management Rails ........................................509
RACKMOUNT ANGLES AND ACCESSORIES
PROLINE™ Rack Angles Overview. . . . . . . . . . . . . . . . . . . . . . . . . . . . . . . . . 510
19-in. Rack Angles ............................................510
23-in. Rack Angles ............................................511
24-in. Rack Angles ............................................511
Metric Rack Angles. . . . . . . . . . . . . . . . . . . . . . . . . . . . . . . . . . . . . . . . . . . . 512
Rack Angle Adapter Bracket .....................................512
Frame Accessory Bracket .......................................512
Pull-Out Shelf ................................................513
Pull-Out Shelf Lock ...........................................513
Fixed Shelf ..................................................513
Guides ......................................................514
Filler Panel for Rack Angles .....................................514
Screw Package ...............................................514
Cage Nut Package. . . . . . . . . . . . . . . . . . . . . . . . . . . . . . . . . . . . . . . . . . . . . 514
Rack Panels .................................................515
Adjustable Rack-Mounting Rails .................................516
Frame-Reducing Brackets for Frames or Grid Straps ..................516
Slides ......................................................517
Rack-Angle Mounted Drawer ....................................517
Writing Surface ..............................................517
PROLINEPC MODULAR ENCLOSURES AND ACCESSORIES
PROLINE™-PC, Type 12 .........................................518
Selection Matrix ..............................................521
Frames .....................................................523
Covers for Upper Front .........................................523
Doors for Upper Front ..........................................523
Window Doors for Upper Front ...................................524
Covers for Lower Front .........................................524
Doors for Lower Front ..........................................524
Doors with Windows for Lower Front ..............................525
Keyboard Shelf ...............................................525
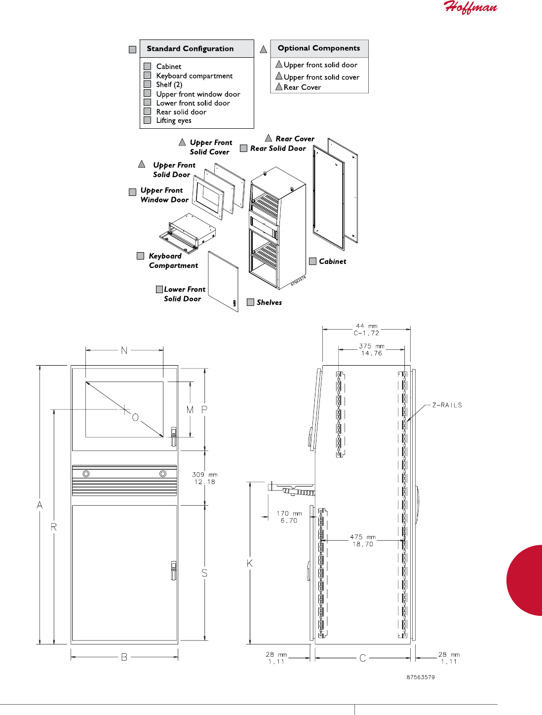
Keyboard Compartment ........................................526
Consolet Compartment .........................................527
Keyboard Shelves with Integrated Keyboard/Mouse ...................527
20-Degree Control Compartment .................................527
Access Cover ................................................528
Writing Desk .................................................528
Pencil Tray ..................................................528
PROLINESY MODULAR ENCLOSURE SYSTEM
PROLINE™-SY, Type 12 .........................................530
Selection Matrix ..............................................532
Covers for Upper and Lower Front .................................534
Doors for Upper and Lower Front .................................534
Doors with Windows for Upper and Lower Front ......................534
Covers with HMI Cutouts .......................................535
PROLINE™ GOLD SERIES COMPUTER WORKSTATION ENCLOSURE SYSTEM
PROLINE™ Gold Series Computer Workstation, Type 12 ................536
Solid Covers .................................................539
Solid Doors ..................................................539
PROLINE™ GOLD SERIES DESK CONSOLES AND ACCESSORIES
PROLINE™ Gold Series Desk Console, Type 12 .......................540
PROLINE™ Gold Series Double-Bay Desk Console, Type 12 .............542
Wedge Consoles ..............................................544
Joining Kit ..................................................544
Full Back Panel. . . . . . . . . . . . . . . . . . . . . . . . . . . . . . . . . . . . . . . . . . . . . . .544
Caster Kit ...................................................545
Side-Mount Panel .............................................545

EQUIPMENT PROTECTIONSUBJECT TO CHANGE WITHOUT NOTICE
MODULAR ENCLOSURE SYSTEMS428
6
PROLINE™ MODULAR ENCLOSURES PROLINE™ MOduLaR ENcLOsuRE systEMs
PROLINE™ MOduLaR ENcLOsuREs
PROLINE™ MOduLaR ENcLOsuRE systEMs
PROLINE™ MODULAR ENCLOSURES PRODUCT OVERVIEW
The PROLINE™ Modular Enclosure system is designed to protect electrical
and electronic equipment in industrial, local area networking and
telecommunications applications. Each enclosure provides full protection from
dirt, dust, moisture, oil and other contaminants. Standard versions of PROLINE
also shield against electromagnetic and radio frequency interference (EMC).
PROLINE enclosures consist of a rugged frame that protects your equipment
from the stresses of movement and shipping. Select from a wide variety of
tops, bases, covers, sides and doors to configure a customized solution. After
you’ve selected the external components, the complete PROLINE offering of
rack angle, subpanel and grid mounting options allows you to install your
equipment securely within the enclosure. Mounting options accommodate
rack mount equipment, operator interfaces, industrial control equipment and
computer systems, as well as manage wiring and cabling.
Pentair Technical Products manufactures and supports PROLINE worldwide to
meet the needs of our global customers.

EQUIPMENT PROTECTION
MODULAR ENCLOSURE SYSTEMS 429
6
PROLINE™ MODULAR ENCLOSURES PROLINE™ MOduLaR ENcLOsuRE systEMs
PROLINE™ MODULAR ENCLOSURES PRODUCT DESCRIPTION
INDUSTRY STANDARDS
Gasketed assembled enclosure
EMC assembled enclosure
SPECIFICATIONS
FINISH
OPTIONS
Frames
External Components
Internal Components
ORDERING
Customer-Specified Assemblies
Assembled Enclosures
Individual Parts

EQUIPMENT PROTECTIONSUBJECT TO CHANGE WITHOUT NOTICE
MODULAR ENCLOSURE SYSTEMS430
6
PROLINE™ INDUSTRIAL ENCLOSURES PROLINE™ INdustRIaL PackagEs
PROLINE™ INdustRIaL ENcLOsuREs
PROLINE™ INdustRIaL PackagEs
PROLINE™ INDUSTRIAL PACKAGES, TYPE 12
INDUSTRY STANDARDS
APPLICATION
SPECIFICATIONS
FINISH
ACCESSORIES
Bulletin: P20, P21
Catalog Number AxBxC mm AxBxC in.
PP1466 1400 x 600 x 600 55.12 x 23.62 x 23.62
PP1485 1400 x 800 x 500 55.12 x 31.50 x 19.69
PPOD1485 1400 x 800 x 500 55.12 x 31.50 x 19.69
PPOD16126 1600 x 1200 x 600 62.99 x 47.24 x 23.62
PP1666 1600 x 600 x 600 62.99 x 23.62 x 23.62
PP1668 1600 x 600 x 800 62.99 x 23.62 x 31.50
PP1686 1600 x 800 x 600 62.99 x 31.50 x 23.62
PPOD1686 1600 x 800 x 600 62.99 x 31.50 x 23.62
PP1688 1600 x 800 x 800 62.99 x 31.50 x 31.50
PPOD1688 1600 x 800 x 800 62.99 x 31.50 x 31.50
PP18105 1800 x 1000 x 500 70.87 x 39.37 x 19.69
PPOD18105 1800 x 1000 x 500 70.87 x 39.37 x 19.69
PP18106 1800 x 1000 x 600 70.88 x 39.37 x 23.62
PPOD18106 1800 x 1000 x 600 70.87 x 39.37 x 23.62
PP18108 1800 x 1000 x 800 70.87 x 39.37 x 31.50
PPOD18108 1800 x 1000 x 800 70.87 x 39.37 x 31.50
PPOD18124 1800 x 1200 x 400 70.87 x 47.24 x 15.75
PPOD18125 1800 x 1200 x 500 70.87 x 47.24 x 19.69
PPOD18126 1800 x 1200 x 600 70.87 x 47.24 x 23.62
PPOD18128 1800 x 1200 x 800 70.87 x 47.24 x 31.50
PPOD18165 1800 x 1600 x 500 70.87 x 62.99 x 19.69
PPOD18166 1800 x 1600 x 600 70.87 x 62.99 x 23.62
PPOD18168 1800 x 1600 x 800 70.87 x 62.99 x 31.50
PP1866 1800 x 600 x 600 70.87 x 23.62 x 23.62
PP1868 1800 x 600 x 800 70.87 x 23.62 x 31.50
PP1885 1800 x 800 x 500 70.87 x 31.50 x 19.69
PPOD1885 1800 x 800 x 500 70.87 x 31.50 x 19.69
PPOD1886 1800 x 800 x 600 70.87 x 31.50 x 23.62
PP1888 1800 x 800 x 800 70.87 x 31.50 x 31.50
PPOD1888 1800 x 800 x 800 70.87 x 31.50 x 31.50
PP20105 2000 x 1000 x 500 78.74 x 39.37 x 19.69
PPOD20105 2000 x 1000 x 500 78.74 x 39.37 x 19.69
PP20106 2000 x 1000 x 600 78.74 x 39.37 x 23.62
PPOD20106 2000 x 1000 x 600 78.74 x 39.37 x 23.62
PP20108 2000 x 1000 x 800 78.74 x 39.37 x 31.50

EQUIPMENT PROTECTION
MODULAR ENCLOSURE SYSTEMS 431
6
PROLINE™ INDUSTRIAL ENCLOSURES PROLINE™ INdustRIaL PackagEs
Catalog Number AxBxC mm AxBxC in.
PPOD20108 2000 x 1000 x 800 78.74 x 39.37 x 31.50
PPOD20125 2000 x 1200 x 500 78.74 x 47.24 x 19.69
PPOD20126 2000 x 1200 x 600 78.74 x 47.24 x 23.62
PPOD20128 2000 x 1200 x 800 78.74 x 47.24 x 31.50
PPOD20165 2000 x 1600 x 500 78.74 x 62.99 x 19.69
PPOD20166 2000 x 1600 x 600 78.74 x 62.99 x 23.62
PPOD20168 2000 x 1600 x 800 78.74 x 62.99 x 31.50
PP2046 2000 x 400 x 600 78.74 x 15.75 x 23.62
PP2064 2000 x 600 x 400 78.74 x 23.62 x 15.75
PP2065 2000 x 600 x 500 78.74 x 23.62 x 19.69
PP2066 2000 x 600 x 600 78.74 x 23.62 x 23.62
PP2068 2000 x 600 x 800 78.74 x 23.62 x 31.50
PP2084 2000 x 800 x 400 78.74 x 31.50 x 15.75
PPOD2084 2000 x 800 x 400 78.74 x 31.50 x 15.75
PP2085 2000 x 800 x 500 78.74 x 31.50 x 19.69
PPOD2085 2000 x 800 x 500 78.74 x 31.50 x 19.69
PP2086 2000 x 800 x 600 78.74 x 31.50 x 23.62
PPOD2086 2000 x 800 x 600 78.74 x 31.50 x 23.62
PP2088 2000 x 800 x 800 78.74 x 31.50 x 31.50
PPOD2088 2000 x 800 x 800 78.74 x 31.50 x 31.50
PP22105 2200 x 1000 x 500 86.61 x 39.37 x 19.69
PPOD22105 2200 x 1000 x 500 86.61 x 39.37 x 19.69
PP22106 2200 x 1000 x 600 86.61 x 39.37 x 23.62
PPOD22106 2200 x 1000 x 600 86.61 x 39.37 x 23.62
PPOD22125 2200 x 1200 x 500 86.61 x 47.24 x 19.69
PPOD22126 2200 x 1200 x 600 86.61 x 47.24 x 23.62
PPOD22128 2200 x 1200 x 800 86.61 x 47.24 x 31.50
PP2266 2200 x 600 x 600 86.61 x 23.62 x 23.62
PP2268 2200 x 600 x 800 86.61 x 23.62 x 31.50
PP2286 2200 x 800 x 600 86.61 x 31.50 x 23.62
PPOD2286 2200 x 800 x 600 86.61 x 31.50 x 23.62
PP2288 2200 x 800 x 800 86.61 x 31.50 x 31.50
6WDQGDUG&RQILJXUDWLRQ

EQUIPMENT PROTECTIONSUBJECT TO CHANGE WITHOUT NOTICE
MODULAR ENCLOSURE SYSTEMS432
6
PROLINE™ FRAMES AND FRAME ACCESSORIES PROLINE™ FRaMEs
PROLINE™ FRaMEs aNd FRaME accEssORIEs
PROLINE™ FRaMEs
PROLINE™ FRAMES
Selection
Frame Type
Heights
mm/in.
Widths
mm/in.
Depths
mm/in.
Single-Bay Frames 700 600 and 800 600
1400 600 and 800 500, 600 and 800
1600 600, 700 and 800 400, 500, 600 and 800
1800 600, 700, 800 and 1000 400, 500, 600 and 800
2000 400, 600, 700, 800 and 1000 400, 500, 600 and 800
2200 600, 700, 800 and 1000 500, 600, 800 and 900
Double-Bay Frames 700 1200 600
1600 1200 400, 500, 600 and 800
1800 1200 and 1600 400, 500, 600 and 800
2000 1200 and 1600 400, 500, 600 and 800
2200 1200 500, 600 and 800

EQUIPMENT PROTECTION
MODULAR ENCLOSURE SYSTEMS 433
6
PROLINE™ FRAMES AND FRAME ACCESSORIES PROLINE™ FRaMEs
SINGLEBAY FRAMES
SPECIFICATIONS
Bulletin: P20
Catalog Number AxBxC in. AxBxC mm
Nominal Frame
Size A x B x C
Maximum
Subpanel
Size (mm)
Maximum
Subpanel
Size (in.)
Maximum
Rack
Mounting
Space
PF766 26.77 x 23.58 x 23.15 680 x 599 x 588 700 x 600 x 600 585 x 530 23.03 x 20.87 13U
PF786 27.56 x 31.50 x 23.62 700 x 800 x 600 700 x 800 x 600 585 x 530 23.03 x 20.87 13U
PF1466 54.33 x 23.58 x 23.15 1380 x 599 x 588 1400 x 600 x 600 1285 x 530 50.59 x 20.87 28U
PF1468 55.12 x 23.62 x 31.50 1400 x 600 x 800 1400 x 600 x 800 1285 x 530 50.59 x 20.87 28U
PF1485 55.12 x 31.50 x 19.69 1400 x 800 x 500 1400 x 800 x 500 1285 x 530 50.59 x 20.87 28U
PF1488 55.12 x 31.50 x 31.50 1400 x 800 x 800 1400 x 800 x 800 1285 x 530 50.59 x 20.87 28U
PF1664 62.99 x 23.62 x 15.75 1600 x 600 x 400 1600 x 600 x 400 1485 x 530 58.46 x 20.87 33U
PF1666 62.20 x 23.58 x 23.15 1580 x 599 x 588 1600 x 600 x 600 1485 x 530 58.46 x 20.87 33U
PF1668 62.99 x 23.62 x 31.50 1600 x 600 x 800 1600 x 600 x 800 1485 x 530 58.46 x 20.87 33U
PF1686 62.99 x 31.50 x 23.62 1600 x 800 x 600 1600 x 800 x 600 1485 x 730 58.46 x 28.74 33U
PF1688 62.99 x 31.50 x 31.50 1600 x 800 x 800 1600 x 800 x 800 1485 x 730 58.46 x 28.74 33U
PF1864 70.87 x 23.62 x 15.75 1800 x 600 x 400 1800 x 600 x 400 1685 x 530 66.34 x 20.87 38U
PF1865 70.08 x 23.58 x 19.21 1780 x 599 x 488 1800 x 600 x 500 1685 x 530 66.34 x 20.87 38U
PF1866 70.87 x 23.62 x 23.62 1800 x 600 x 600 1800 x 600 x 600 1685 x 530 66.34 x 20.87 38U
PF1868 70.87 x 23.62 x 31.50 1800 x 600 x 800 1800 x 600 x 800 1685 x 530 66.34 x 20.87 38U
PF1884 70.87 x 31.50 x 15.75 1800 x 800 x 400 1800 x 800 x 400 1685 x 730 66.34 x 28.74 38U
PF1885 70.87 x 31.50 x 19.69 1800 x 800 x 500 1800 x 800 x 500 1685 x 730 66.34 x 28.74 38U
PF1886 70.87 x 31.50 x 23.62 1800 x 800 x 600 1800 x 800 x 600 1685 x 730 66.34 x 28.74 38U
PF1888 70.87 x 31.50 x 31.50 1800 x 800 x 800 1800 x 800 x 800 1685 x 730 66.34 x 28.74 38U
PF18105 70.87 x 39.37 x 19.69 1800 x 1000 x 500 1800 x 1000 x 500 1685 x 930 66.34 x 36.61 38U
PF18106 70.87 x 39.37 x 23.62 1800 x 1000 x 600 1800 x 1000 x 600 1685 x 930 66.34 x 36.61 38U
PF18108 70.87 x 39.37 x 31.50 1800 x 1000 x 800 1800 x 1000 x 800 1685 x 930 66.34 x 36.61 38U
PF2064 78.74 x 23.62 x 15.75 2000 x 600 x 400 2000 x 600 x 400 1885 x 530 74.21 x 20.87 42U
PF2045 78.74 x 15.75 x 19.69 2000 x 400 x 500 2000 x 400 x 500 1885 x 530 74.21 x 20.87 42U
PF2065 78.74 x 23.62 x 19.69 2000 x 600 x 500 2000 x 600 x 500 1885 x 530 74.21 x 20.87 42U
PF2046 78.74 x 15.75 x 23.62 2000 x 400 x 600 2000 x 400 x 600 1885 x 530 74.21 x 20.87 42U
PF2066 78.74 x 23.62 x 23.62 2000 x 600 x 600 2000 x 600 x 600 1885 x 530 74.21 x 20.87 42U
PF2068 78.74 x 23.62 x 31.50 2000 x 600 x 800 2000 x 600 x 800 1885 x 530 74.21 x 20.87 42U
PF2076 78.74 x 27.56 x 23.62 2000 x 700 x 600 2000 x 700 x 600 1885 x 630 74.21 x 24.80 42U
PF2078 78.74 x 27.56 x 31.50 2000 x 700 x 800 2000 x 700 x 800 1885 x 630 74.21 x 24.80 42U
PF2084 78.74 x 31.50 x 15.75 2000 x 800 x 400 2000 x 800 x 400 1885 x 730 74.21 x 28.74 42U
PF2085 78.74 x 31.50 x 19.69 2000 x 800 x 500 2000 x 800 x 500 1885 x 730 74.21 x 28.74 42U
PF2086 78.74 x 31.50 x 23.62 2000 x 800 x 600 2000 x 800 x 600 1885 x 730 74.21 x 28.74 42U
PF2088 78.74 x 31.50 x 31.50 2000 x 800 x 800 2000 x 800 x 800 1885 x 730 74.21 x 28.74 42U
PF2089 78.74 x 31.50 x 35.43 2000 x 800 x 900 2000 x 800 x 900 1885 x 730 74.21 x 28.74 42U
PF20105 78.74 x 39.37 x 19.69 2000 x 1000 x 500 2000 x 1000 x 500 1885 x 930 74.21 x 36.61 42U
PF20106 78.74 x 39.37 x 23.62 2000 x 1000 x 600 2000 x 1000 x 600 1885 x 930 74.21 x 36.61 42U
PF20108 78.74 x 39.37 x 31.50 2000 x 1000 x 800 2000 x 1000 x 800 1885 x 930 74.21 x 36.61 42U
PF2266 86.61 x 23.62 x 23.62 2200 x 600 x 600 2200 x 600 x 600 2085 x 530 82.09 x 20.87 47U
PF2268 86.61 x 23.62 x 31.50 2200 x 600 x 800 2200 x 600 x 800 2085 x 530 82.09 x 20.87 47U
PF2278 86.61 x 27.56 x 31.50 2200 x 700 x 800 2200 x 700 x 800 2085 x 630 82.09 x 24.80 47U
PF2279 86.61 x 27.56 x 35.43 2200 x 700 x 900 2200 x 700 x 900 2085 x 630 82.09 x 24.80 47U
PF2286 86.61 x 31.50 x 23.62 2200 x 800 x 600 2200 x 800 x 600 2085 x 730 82.09 x 28.74 47U
PF2288 86.61 x 31.50 x 31.50 2200 x 800 x 800 2200 x 800 x 800 2085 x 730 82.09 x 28.74 47U
PF22105 86.61 x 39.37 x 19.69 2200 x 1000 x 500 2200 x 1000 x 500 2085 x 930 82.09 x 36.61 47U
PF22106 86.61 x 39.37 x 23.62 2200 x 1000 x 600 2200 x 1000 x 600 2085 x 930 82.09 x 36.61 47U
1 rack unit = 1.75 in. (44 mm)

EQUIPMENT PROTECTIONSUBJECT TO CHANGE WITHOUT NOTICE
MODULAR ENCLOSURE SYSTEMS434
6
PROLINE™ FRAMES AND FRAME ACCESSORIES PROLINE™ FRaMEs

EQUIPMENT PROTECTIONSUBJECT TO CHANGE WITHOUT NOTICE
MODULAR ENCLOSURE SYSTEMS436
6
PROLINE™ FRAMES AND FRAME ACCESSORIES PROLINE™ FRaMEs
DOUBLEBAY FRAMES
FEATURES
SPECIFICATIONS
Bulletin: P20
Catalog Number AxBxC in./mm
Nominal Frame
Size A x B x C
Maximum
Subpanel
Size
mm/in.
Maximum
Rack
Mounting
Space
PF7126 27.56 x 47.24 x 23.62
700 x 1200 x 600
700 x 1200 x 600 585 x 1130
23.03 x 44.49
13U x 2
PF16126 62.99 x 47.24 x 23.62
1600 x 1200 x 600
1600 x 1200 x 600 1485 x 1130
58.46 x 44.49
33U x 2
PF16128 62.99 x 47.24 x 31.50
1600 x 1200 x 800
1600 x 1200 x 800 1485 x 1130
58.46 x 44.49
33U x 2
PF18124 70.87 x 47.24 x 15.75
1800 x 1200 x 400
1800 x 1200 x 400 1685 x 1130
66.34 x 44.49
38U x 2
PF18125 70.87 x 47.24 x 19.69
1800 x 1200 x 500
1800 x 1200 x 500 1685 x 1130
66.34 x 44.49
38U x 2
PF18126 70.87 x 47.24 x 23.62
1800 x 1200 x 600
1800 x 1200 x 600 1685 x 1130
66.34 x 44.49
38U x 2
PF18128 70.87 x 47.24 x 31.50
1800 x 1200 x 800
1800 x 1200 x 800 1685 x 1130
66.34 x 44.49
38U x 2
PF18165 70.87 x 62.99 x 19.69
1800 x 1600 x 500
1800 x 1600 x 500 1685 x 1530
66.34 x 60.24
38U x 2
PF18166 70.87 x 62.99 x 23.62
1800 x 1600 x 600
1800 x 1600 x 600 1685 x 1530
66.34 x 60.24
38U x 2
PF18168 70.87 x 62.99 x 31.50
1800 x 1600 x 800
1800 x 1600 x 800 1685 x 1530
66.34 x 60.24
38U x 2
PF20124 78.74 x 47.24 x 15.75
2000 x 1200 x 400
2000 x 1200 x 400 1885 x 1130
74.21 x 44.49
42U x 2
PF20125 78.74 x 47.24 x 19.69
2000 x 1200 x 500
2000 x 1200 x 500 1885 x 1130
74.21 x 44.49
42U x 2
PF20126 78.74 x 47.24 x 23.62
2000 x 1200 x 600
2000 x 1200 x 600 1885 x 1130
74.21 x 44.49
42U x 2
PF20128 78.74 x 47.24 x 31.50
2000 x 1200 x 800
2000 x 1200 x 800 1885 x 1130
74.21 x 44.49
42U x 2
PF20165 78.74 x 62.99 x 19.69
2000 x 1600 x 500
2000 x 1600 x 500 1885 x 1530
74.21 x 60.24
42U x 2
PF20166 78.74 x 62.99 x 23.62
2000 x 1600 x 600
2000 x 1600 x 600 1885 x 1530
74.21 x 60.24
42U x 2
PF20168 78.74 x 62.99 x 31.50
2000 x 1600 x 800
2000 x 1600 x 800 1885 x 1530
74.21 x 60.24
42U x 2
PF22125 86.61 x 47.24 x 19.69
2200 x 1200 x 500
2200 x 1200 x 500 2085 x 1130
82.09 x 44.49
47U x 2
PF22126 86.61 x 47.24 x 23.62
2200 x 1200 x 600
2200 x 1200 x 600 2085 x 1130
82.09 x 44.49
47U x 2
PF22128 86.61 x 47.24 x 31.50
2200 x 1200 x 800
2200 x 1200 x 800 2085 x 1130
82.09 x 44.49
47U x 2
1 rack unit = 1.75 in. (44 mm)

EQUIPMENT PROTECTIONSUBJECT TO CHANGE WITHOUT NOTICE
MODULAR ENCLOSURE SYSTEMS438
6
PROLINE™ FRAMES AND FRAME ACCESSORIES PROLINE™ FRaMEs
EMC FRAMES
FEATURES
SPECIFICATIONS
Bulletin: P20eM
Catalog Number AxBxC in. AxBxC mm
Nominal Frame
Size A x B xC
Maximum
Subpanel
Size (mm)
Maximum
Subpanel
Size (in.)
Maximum
Rack
Mounting
Space
PF786HF 27.56 x 31.50 x 23.62 700 x 800 x 600 700 x 800 x 600 585 x 530 23.03 x 20.87 13U
PF1466HF 55.12 x 23.62 x 23.62 1400 x 600 x 600 1400 x 600 x 600 1285 x 530 50.59 x 20.87 28U
PF1485HF 55.12 x 31.50 x 19.69 1400 x 800 x 500 1400 x 800 x 500 1285 x 530 50.59 x 20.87 28U
PF1488HF 55.12 x 31.50 x 31.50 1400 x 800 x 800 1400 x 800 x 800 1285 x 530 50.59 x 20.87 28U
PF1664HF 62.99 x 23.62 x 15.75 1600 x 600 x 400 1600 x 600 x 400 1485 x 530 58.46 x 20.87 28U
PF1668HF 62.99 x 23.62 x 31.50 1600 x 600 x 800 1600 x 600 x 800 1485 x 530 58.46 x 20.87 33U
PF1686HF 1600.00 x 800.00 x 600.00 1580 x 799 x 588 1600 x 800 x 600 1485 x 730 58.46 x 28.74 33U
PF1688HF 1600.00 x 800.00 x 800.00 1580 x 799 x 788 1600 x 800 x 800 1485 x 730 58.46 x 28.74 33U
PF1866HF 70.87 x 23.62 x 23.62 1800 x 600 x 600 1800 x 600 x 600 1685 x 530 66.34 x 20.87 33U
PF1868HF 70.87 x 23.62 x 31.50 1800 x 600 x 800 1800 x 600 x 800 1685 x 530 66.34 x 20.87 38U
PF1884HF 70.87 x 31.50 x 15.75 1800 x 800 x 400 1800 x 800 x 400 1685 x 730 66.34 x 28.74 38U
PF1885HF 70.87 x 31.50 x 19.69 1800 x 800 x 500 1800 x 800 x 500 1685 x 730 66.34 x 28.74 38U
PF1886HF 70.87 x 31.50 x 23.62 1800 x 800 x 600 1800 x 800 x 600 1685 x 730 66.34 x 28.74 38U
PF1888HF 70.87 x 31.50 x 31.50 1800 x 800 x 800 1800 x 800 x 800 1685 x 730 66.34 x 28.74 38U
PF18105HF 70.87 x 39.37 x 19.69 1800 x 1000 x 500 1800 x 1000 x 500 1685 x 930 66.34 x 36.61 38U
PF18106HF 70.87 x 39.37 x 23.62 1800 x 1000 x 600 1800 x 1000 x 600 1685 x 930 66.34 x 36.61 38U
PF18108HF 1800.00 x 1000.00 x 800.00 1780 x 999 x 788 1800 x 1000 x 800 1685 x 930 66.34 x 36.61 38U
PF2064HF 2000.00 x 600.00 x 400.00 1980 x 599 x 388 2000 x 600 x 400 1885 x 530 74.21 x 20.87 42U
PF2065HF 78.74 x 23.62 x 19.69 2000 x 600 x 500 2000 x 600 x 500 1885 x 530 74.21 x 20.87 42U
PF2066HF 78.74 x 23.62 x 23.62 2000 x 600 x 600 2000 x 600 x 600 1885 x 530 74.21 x 20.87 42U
PF2068HF 78.74 x 23.62 x 31.50 2000 x 600 x 800 2000 x 600 x 800 1885 x 530 74.21 x 20.87 42U
PF2076HF 2000.00 x 700.00 x 600.00 1980 x 699 x 588 2000 x 700 x 600 1885 x 630 74.21 x 24.80 42U
PF2078HF 78.74 x 27.56 x 31.50 2000 x 700 x 800 2000 x 700 x 800 1885 x 630 74.21 x 24.80 42U
PF2084HF 78.74 x 31.50 x 15.75 2000 x 800 x 400 2000 x 800 x 400 1885 x 730 74.21 x 28.74 42U
PF2085HF 78.74 x 31.50 x 19.69 2000 x 800 x 500 2000 x 800 x 500 1885 x 730 74.21 x 28.74 42U
PF2086HF 2000.00 x 800.00 x 600.00 1980 x 799 x 588 2000 x 800 x 600 1885 x 730 74.21 x 28.74 42U
PF2088HF 78.74 x 31.50 x 31.50 2000 x 800 x 800 2000 x 800 x 800 1885 x 730 74.21 x 28.74 42U
PF2089HF 78.74 x 31.50 x 35.43 2000 x 800 x 900 2000 x 800 x 900 1885 x 730 74.21 x 28.74 42U
PF20105HF 78.74 x 39.37 x 19.69 2000 x 1000 x 500 2000 x 1000 x 500 1885 x 930 74.21 x 36.61 42U
PF20106HF 78.74 x 39.37 x 23.62 2000 x 1000 x 600 2000 x 1000 x 600 1885 x 930 74.21 x 36.61 42U
PF20108HF 78.74 x 39.37 x 31.50 2000 x 1000 x 800 2000 x 1000 x 800 1885 x 930 74.21 x 36.61 42U
PF2266HF 86.61 x 23.62 x 23.62 2200 x 600 x 600 2200 x 600 x 600 2085 x 530 82.09 x 20.87 47U
PF2278HF 86.61 x 27.56 x 31.50 2200 x 700 x 800 2200 x 700 x 800 2085 x 630 82.09 x 24.80 47U
PF2279HF 86.61 x 27.56 x 35.43 2200 x 700 x 900 2200 x 700 x 900 2085 x 630 82.09 x 24.80 47U
PF2286HF 2200.00 x 800.00 x 600.00 2180 x 799 x 588 2200 x 800 x 600 2085 x 730 82.09 x 28.74 47U
PF2288HF 86.61 x 31.50 x 31.50 2200 x 800 x 800 2200 x 800 x 800 2085 x 730 82.09 x 28.74 47U
PF22105HF 86.61 x 39.37 x 19.69 2200 x 1000 x 500 2200 x 1000 x 500 2085 x 930 82.09 x 36.61 47U
PF22106HF 2200.00 x 1000.00 x 600.00 2180 x 999 x 588 2200 x 1000 x 600 2085 x 930 82.09 x 36.61 47U
1 rack unit = 1.75 in. (44 mm)

EQUIPMENT PROTECTIONSUBJECT TO CHANGE WITHOUT NOTICE
MODULAR ENCLOSURE SYSTEMS440
6
PROLINE™ FRAMES AND FRAME ACCESSORIES PROLINE™ FRaME accEssORIEs
PROLINE™ FRaME accEssORIEs
FRAME JOINING KITS
Side-to-Side Joining Kit
Alternate Joining Kit
Front-to-Back Joining Kit
Bulletin: P20, P20eM
Catalog Number Description
PJ2F Standard Frame Joining, Side-to-Side
PJ2FD Standard Frame Joining, Side-to-Side, Non-gasketed
PJ2FHF2 EMC Standard Frame Joining, Side-to-Side
PJ2FF Alternate Frame Joining, Side-to-Side
PJ2FBF Frame Joining, Front-to-Back
L JOINING BRACKET
Bulletin: P20
Catalog Number Description
PJB2F L Joining Bracket
STAINLESS STEEL LEGS
Bulletin: P20S
Catalog Number Description
PLEGSS (4) Stainless Steel Legs

EQUIPMENT PROTECTION
MODULAR ENCLOSURE SYSTEMS 441
6
PROLINE™ FRAMES AND FRAME ACCESSORIES PROLINE™ FRaME accEssORIEs
LIFTING EYES
Lifting Eyes are designed for overhead lifting in conjunction with
shackles and a spreader bar. Use of shackles instead of hooks is
preferred. The angle between the top of the enclosure and the cable
or chain must be at least 45°. Use only slings and spreader bars that
are designed for the specific application and are in compliance with
regulations established by OSHA, ASME, ISA, ASTM and other governing
agencies.
Bulletin: P20
Catalog Number Description
PLEM12 (4) Lifting Eyes
LIFTING ANGLES
Lifting Angles are designed for overhead lifting in conjunction with
shackles and a spreader bar. Use of shackles instead of hooks is
preferred. The angle between the top of the enclosure and the cable
or chain must be at least 45°. Use only slings and spreader bars that
are designed for the specific application and are in compliance with
regulations established by OSHA, ASME, ISA, ASTM and other governing
agencies.
Bulletin: P20
Catalog Number Description
PJLBFB Front-to-back lifting angles
PJLBSS Side-to-side lifting angles
PROLINE™ FASTENER PACKAGES
Bulletin: DACCY, P20
Catalog Number Description Use in Pkg. Qty.
ASM5T M5 x 12 mm thread-forming Phillips hex head screws Round holes 20
PGFM6 Standard Package - M6 cage nuts and bolts Rectangular holes 20
PGFGM6 Grounding Package - M6 grounding cage nuts and bolts Tapped holes 20
TOUCHUP PAINT
Bulletin: DACCY, P20
Catalog Number Description
ATPG7035 RAL 7035 Gray
ATPB9005 RAL 9005 Black

EQUIPMENT PROTECTIONSUBJECT TO CHANGE WITHOUT NOTICE
MODULAR ENCLOSURE SYSTEMS442
6
PROLINE™ FRAMES AND FRAME ACCESSORIES PROLINE™ cabLE ENtRy cabINEts aNd accEssORIEs
PROLINE™ cab LE ENtRy cabINEt s aNd accEssO RIEs
CABLE ENTRY CABINETS
Bulletin: P20
Catalog Number AxBxC mm/in. Fits Frame
D
mm/in.
E
mm/in.
J
mm/in.
PCE165300 1600 x 500
62.99 x 19.69
1600 tall x 500 deep 1518
59.78
415
16.34
424
16.69
PCE166300 1600 x 600
62.99 x 23.62
1600 tall x 600 deep 1518
59.78
515
20.28
524
20.62
PCE168300 1600 x 800
62.99 x 31.50
1600 tall x 800 deep 1518
59.78
715
28.15
724
28.50
PCE186300 1800 x 600
70.87 x 23.62
1800 tall x 600 deep 1718
67.65
515
20.28
524
20.62
PCE188300 1800 x 800
70.87 x 31.50
1800 tall x 800 deep 1718
67.65
715
28.15
724
28.50
PCE205300 2000 x 500
78.74 x 19.69
2000 tall x 500 deep 1918
75.52
415
16.34
424
16.69
PCE206300 2000 x 600
78.74 x 23.62
2000 tall x 600 deep 1918
75.52
515
20.28
524
20.62
PCE208300 2000 x 800
78.74 x 31.50
2000 tall x 800 deep 1918
75.52
715
28.15
724
28.50
PCE225300 2200 x 500
86.61 x 19.69
2200 tall x 500 deep 2118
83.40
415
16.34
424
16.69
PCE226300 0.00 2200 tall x 500 deep 2118
83.40
515
20.28
524
20.62
PCE228300 2200 x 800
86.61 x 31.50
2200 tall x 500 deep 2118
83.40
715
28.15
724
28.50

EQUIPMENT PROTECTION
MODULAR ENCLOSURE SYSTEMS 443
6
PROLINE™ FRAMES AND FRAME ACCESSORIES PROLINE™ cabLE ENtRy cabINEts aNd accEssORIEs
CLOSURE PLATES
Bulletin: P20
Catalog Number Description
L
mm/in.
Number
of DIN
Cutouts
PCECGP5 Solid–Fits 500-mm wide cable entry cabinets 497
19.57
—
PCECGP6 Solid–Fits 600-mm wide cable entry cabinets 597
23.51
—
PCECGP8 Solid–Fits 800-mm wide cable entry cabinets 797
31.38
—
PCECGPD5 With DIN cutouts–Fits 500-mm wide cable entry cabinets 497
19.57
5
PCECGPD6 With DIN cutouts–Fits 600-mm wide cable entry cabinets 597
23.51
6
PCECGPD8 With DIN cutouts–Fits 800-mm wide cable entry cabinets 797
31.38
8
PCEGPA5 Adjustable–Fits 500-mm wide cable entry cabinets 497
19.57
—
PCEGPA6 Adjustable–Fits 600-mm wide cable entry cabinets 597
23.51
—
PCEGPA8 Adjustable–Fits 800-mm wide cable entry cabinets 797
31.38
—
CLOSURE PLATE ADAPTERS FOR CUTOUTS
Bulletin: P20
Catalog Number Description Adapter Qty./Package
PAD240 From 24-pin to blank solid cover 1
PAD2416 From 24-pin to 16-pin 1
PAD2410 From 24-pin to 10-pin 1
PAD246 From 24-pin to 6-pin 1
Adapters fit all cable entry cabinets and barriers with 24-pin DIN connector cutouts.

EQUIPMENT PROTECTIONSUBJECT TO CHANGE WITHOUT NOTICE
MODULAR ENCLOSURE SYSTEMS444
6
PROLINE™ EXTERNAL COMPONENTS PROLINE™ ExtERNaL cOMPONENts FOR MOduLaR ENcLOsuREs
PROLINE™ ExtERNaL cOMPONENts
PROLINE™ ExtERNaL cOMPONENts FOR MOduLaR ENcLOsuREs
PROLINE™ EXTERNAL COMPONENTS PRODUCT OVERVIEW
Strength
Flexibility
Protection

EQUIPMENT PROTECTIONSUBJECT TO CHANGE WITHOUT NOTICE
MODULAR ENCLOSURE SYSTEMS446
6
PROLINE™ EXTERNAL COMPONENTS PROLINE™ ExtERNaL cOMPONENts FOR MOduLaR ENcLOsuREs
SELECTION MATRIX: DOORS, COVERS AND SIDES
PROLINE™ EXTERNAL COMPONENTS PROLINE™ EXTERNAL COMPONENTS FOR MODULAR ENCLOSURES
Spec-00423 H
EQUIPMENT PROTECTION SOLUTIONSSUBJECT TO CHANGE WITHOUT NOTICEMODULAR ENCLOSURE SYSTEMS:1
763.422.2211
763.422.2600
Spec-00423
H
MODULAR ENCLOSURE SYSTEMS:
proline™ ex ternal comp onents
proline™ ex ternal comp onents for mo dular enc losures
SELECTION MATRIX: DOORS, COVERS AND SIDES
Steel Sides, Covers and Door Options
A B C Solid SideaSolid CoveraSolid Doora
Door with
Polycarbonate
Window
Door with
Safety
Glass Window Dress
Frame Disconnect
Door Systemb
700 600 600 PSS76 PCS76 PDS76R PDW76 PDWG76 PDF76
700 800 600 PSS76 PCS78 PDS78R PDW78 PDWG78
1400 600 600 PSS146 PCS146 PDS146 PDW146 PDWG146 PDF146
1400 800 500 PSS145 PCS148 PDS148 PDW148 PDWG148
1400 800 800 PSS148 PCS148 PDS148 PDW148 PDWG148
1600 600 400 PSS164 PCS166 PDS166 PDW166 PDWG166 PDF166
1600 600 600 PSS166 PCS166 PDS166 PDW166 PDWG166 PDF166
1600 600 800 PSS168 PCS166 PDS166 PDW166 PDWG166 PDF166
1600 800 600 PSS166 PCS168 PDS168 PDW168 PDWG168 PTDDC168
1600 800 800 PSS168 PCS168 PDS168 PDW168 PDWG168 PTDDC168
1800 600 600 PSS186 PCS186 PDS186 PDW186 PDWG186 PDF186
1800 600 800 PSS188 PCS186 PDS186 PDW186 PDWG186 PDF186
1800 800 400 PSS184 PCS188 PDS188 PDW188 PDWG188 PTDDC188
1800 800 500 PSS185 PCS188 PDS188 PDW188 PDWG188 PTDDC188
1800 800 600 PSS186 PCS188 PDS188 PDW188 PDWG188 PTDDC188
1800 800 800 PSS188 PCS188 PDS188 PDW188 PDWG188 PTDDC188
1800 1000 500 PSS185 PCS1810 PDS1810 PTDDC1810
1800 1000 600 PSS186 PCS1810 PDS1810 PTDDC1810
1800 1000 800 PSS188 PCS1810 PDS1810 PTDDC1810
2000 600 400 PSS204 PCS206 PDS206 PDW206 PDWG206 PDF206
2000 400 500 PSS205 PCS204 PDS204
2000 600 500 PSS205 PCS206 PDS206 PDW206 PDWG206 PDF206
2000 400 600 PSS206 PCS204 PDS204
2000 600 600 PSS206 PCS206 PDS206 PDW206 PDWG206 PDF206
2000 600 800 PSS208 PCS206 PDS206 PDW206 PDWG206 PDF206
2000 700 600 PSS206 PCS207 PDS207 PDW207 PDWG207
2000 700 800 PSS208 PCS207 PDS207 PDW207 PDWG207
2000 800 400 PSS204 PCS208 PDS208 PDW208 PDWG208 PTDDC208
2000 800 500 PSS205 PCS208 PDS208 PDW208 PDWG208 PTDDC208
2000 800 600 PSS206 PCS208 PDS208 PDW208 PDWG208 PTDDC208
2000 800 800 PSS208 PCS208 PDS208 PDW208 PDWG208 PTDDC208
2000 800 900 PSS209 PCS208 PDS208 PDW208 PDWG208 PTDDC208
2000 1000 500 PSS205 PCS2010 PDS2010 PTDDC2010
2000 1000 600 PSS206 PCS2010 PDS2010 PTDDC2010
2000 1000 800 PSS208 PCS2010 PDS2010 PTDDC2010
2200 600 600 PSS226 PCS226 PDS226 PDW226 PDWG226 PDF226
2200 600 800 PSS228 PCS226 PDS226 PDW226 PDWG226 PDF226
2200 700 800 PSS228 PCS227 PDS227 PDW227 PDWG227
2200 700 900 PSS229 PCS227 PDS227 PDW227 PDWG227
2200 800 600 PSS226 PCS228 PDS228 PDW228 PDWG228
2200 800 800 PSS228 PCS228 PDS228 PDW228 PDWG228
2200 1000 500 PSS225 PCS2210 PDS2210
2200 1000 600 PSS226 PCS2210 PDS2210
aAlso available with EMC shielding.
bCatalog numbers shown in matrix are for doors with right-hand provision. Doors with left-hand and large cutout provisions also are available.

EQUIPMENT PROTECTION
MODULAR ENCLOSURE SYSTEMS 447
6
PROLINE™ EXTERNAL COMPONENTS PROLINE™ ExtERNaL cOMPONENts FOR MOduLaR ENcLOsuREs
PROLINE™ EXTERNAL COMPONENTS PROLINE™ EXTERNAL COMPONENTS FOR MODULAR ENCLOSURES
Spec-00423 H PH 763.422.2211 • FAX 763.422.2600 • PENTAIRPROTECT.COMEQUIPMENT PROTECTION SOLUTIONS MODULAR ENCLOSURE SYSTEMS: 2
Steel Sides, Covers and Door Options
A B C Solid Side Overlapping
Solid DoorsdSolid CovercSolid
Doorc
Door with
Polycarbonate
Windowc
Door with
Glass
WindowcDress
Framec
Disconnect
Door
Systemc
700 1200 600 PSS76 PTD712 PCS76 PDS76R PDW76 PDWG76 PDFA76
1600 1200 600 PSS166 PTD1612 PCS166 PDS166 PDW166 PDWG166 PDFA166
1600 1200 800 PSS168 PTD1612 PCS166 PDS166 PDW166 PDWG166 PDFA166
1800 1200 400 PSS184 PTD1812 PCS186 PDS186 PDW186 PDWG186 PDFA186
1800 1200 500 PSS185 PTD1812 PCS186 PDS186 PDW186 PDWG186 PDFA186
1800 1200 600 PSS186 PTD1812 PCS186 PDS186 PDW186 PDWG186 PDFA186
1800 1200 800 PSS188 PTD1812 PCS186 PDS186 PDW186 PDWG186 PDFA186
1800 1600 500 PSS185 PTD1816 PCS188 PDS188 PDW188 PDWG188 PTDDC188
1800 1600 600 PSS186 PTD1816 PCS188 PDS188 PDW188 PDWG188 PTDDC188
1800 1600 800 PSS188 PTD1816 PCS188 PDS188 PDW188 PDWG188 PTDDC188
2000 1200 400 PSS204 PTD2012 PCS206 PDS206 PDW206 PDWG206 PDFA206
2000 1200 500 PSS205 PTD2012 PCS206 PDS206 PDW206 PDWG206 PDFA206
2000 1200 600 PSS206 PTD2012 PCS206 PDS206 PDW206 PDWG206 PDFA206
2000 1200 800 PSS208 PTD2012 PCS206 PDS206 PDW206 PDWG206 PDFA206
2000 1600 500 PSS205 PTD2016 PCS208 PDS208 PDW208 PDWG208 PTDDC208
2000 1600 600 PSS206 PTD2016 PCS208 PDS208 PDW208 PDWG208 PTDDC208
2000 1600 800 PSS208 PTD2016 PCS208 PDS208 PDW208 PDWG208 PTDDC208
2200 1200 500 PSS225 PTD2212 PCS226 PDS225 PDFA226
2200 1200 600 PSS226 PTD2212 PCS226 PDS226 PDW226 PDWG226 PDFA226
2200 1200 800 PSS228 PTD2212 PCS226 PDS228 PDW228 PDWG228 PDFA226
c Fits back of standard frame.
d Fits front of standard frame.

EQUIPMENT PROTECTIONSUBJECT TO CHANGE WITHOUT NOTICE
MODULAR ENCLOSURE SYSTEMS448
6
PROLINE™ EXTERNAL COMPONENTS PROLINE™ ExtERNaL cOMPONENts FOR MOduLaR ENcLOsuREs
PROLINE™ EXTERNAL COMPONENTS PROLINE™ EXTERNAL COMPONENTS FOR MODULAR ENCLOSURES
Spec-00423 G
EQUIPMENT PROTECTION SOLUTIONSSUBJECT TO CHANGE WITHOUT NOTICEMODULAR ENCLOSURE SYSTEMS:3
763.422.2211
763.422.2600
Spec-00423
G
MODULAR ENCLOSURE SYSTEMS:
proline™ ex ternal comp onents
proline™ ex ternal comp onents for mo dular enc losures
Stainless Steel Sides, Covers and Door Options
A B C Solid SideaSolid CoveraSolid DooraDoor with
Glass Window
700 600 600 PSS76SS PCS76SS PDS76SS PDWG76SS
700 800 600 PSS76SS PCS78SS PDS78SS PDWG78SS
1400 600 600 PSS146SS PCS146SS PDS146SS PDWG146SS
1400 800 500 PCS148SS PDS148SS
1400 800 800 PSS148SS PCS148SS PDS148SS
1600 600 400 PCS166SS PDS166SS PDWG166SS
1600 600 600 PSS166SS PCS166SS PDS166SS PDWG166SS
1600 600 800 PSS168SS PCS166SS PDS166SS PDWG166SS
1600 800 600 PSS166SS PCS168SS PDS168SS
1600 800 800 PSS168SS PCS168SS PDS168SS
1800 600 600 PSS186SS PCS186SS PDS186SS
1800 600 800 PSS188SS PCS186SS PDS186SS
1800 700 900
1800 800 400 PCS188SS PDS188SS PDWG188SS
1800 800 500 PCS188SS PDS188SS PDWG188SS
1800 800 600 PSS186SS PCS188SS PDS188SS PDWG188SS
1800 800 800 PSS188SS PCS188SS PDS188SS PDWG188SS
1800 1000 500 PCS1810SS PDS1810SS
1800 1000 600 PSS186SS PCS1810SS PDS1810SS
1800 1000 800 PSS188SS PCS1810SS PDS1810SS
2000 600 400 PCS206SS PDS206SS PDWG206SS
2000 400 500
2000 600 500 PCS206SS PDS206SS PDWG206SS
2000 400 600 PSS206SS
2000 600 600 PSS206SS PCS206SS PDS206SS PDWG206SS
2000 600 800 PSS208SS PCS206SS PDS206SS PDWG206SS
2000 700 600 PSS206SS
2000 700 800 PSS208SS
2000 800 400 PCS208SS PDS208SS PDWG208SS
2000 800 500 PCS208SS PDS208SS PDWG208SS
2000 800 600 PSS206SS PCS208SS PDS208SS PDWG208SS
2000 800 800 PSS208SS PCS208SS PDS208SS PDWG208SS
2000 800 900 PCS208SS PDS208SS PDWG208SS
2000 1000 500 PCS2010SS PDS2010SS
2000 1000 600 PSS206SS PCS2010SS PDS2010SS
2000 1000 800 PSS208SS PCS2010SS PDS2010SS
2200 600 600 PSS226SS PCS226SS PDS226SS
2200 600 800 PSS228SS PCS226SS PDS226SS
2200 700 800 PSS228SS
2200 700 900
2200 800 600 PSS226SS PCS228SS PDS228SS PDWG228SS
2200 800 800 PSS228SS PCS228SS PDS228SS PDWG228SS
2200 1000 500
2200 1000 600 PSS226SS
aAlso available with EMC shielding.

EQUIPMENT PROTECTION
MODULAR ENCLOSURE SYSTEMS 449
6
PROLINE™ EXTERNAL COMPONENTS PROLINE™ ExtERNaL cOMPONENts FOR MOduLaR ENcLOsuREs
PROLINE™ EXTERNAL COMPONENTS PROLINE™ EXTERNAL COMPONENTS FOR MODULAR ENCLOSURES
Spec-00423 G PH 763.422.2211 • FAX 763.422.2600 • PENTAIRPROTECT.COMEQUIPMENT PROTECTION SOLUTIONS MODULAR ENCLOSURE SYSTEMS: 4
Steel Sides, Covers and Door Options
A B C Solid Side Overlapping Solid
DoorsdSolid CovercSolid DoorcDoor with Glass
Windowc
700 1200 600 PSS76SS PCS76SS PDS76SS PDWG76SS
1600 1200 600 PSS166SS PCS166SS PDS166SS PDWG166SS
1600 1200 800 PSS168SS PCS166SS PDS166SS PDWG166SS
1800 1200 400 PCS186SS PDS186SS
1800 1200 500 PCS186SS PDS186SS
1800 1200 600 PSS186SS PCS186SS PDS186SS
1800 1200 800 PSS188SS PCS186SS PDS186SS
1800 1600 500 PCS188SS PDS188SS PDWG188SS
1800 1600 600 PSS186SS PCS188SS PDS188SS PDWG188SS
1800 1600 800 PSS188SS PCS188SS PDS188SS PDWG188SS
2000 1200 400 PTD2012SS PCS206SS PDS206SS PDWG206SS
2000 1200 500 PTD2012SS PCS206SS PDS206SS PDWG206SS
2000 1200 600 PSS206SS PTD2012SS PCS206SS PDS206SS PDWG206SS
2000 1200 800 PSS208SS PTD2012SS PCS206SS PDS206SS PDWG206SS
2000 1600 500 PCS208SS PDS208SS PDWG208SS
2000 1600 600 PSS206SS PCS208SS PDS208SS PDWG208SS
2000 1600 800 PSS208SS PCS208SS PDS208SS PDWG208SS
2200 1200 500 PTD2212SS PCS226SS
2200 1200 600 PSS226SS PTD2212SS PCS226SS
2200 1200 800 PSS228SS PTD2212SS PCS226SS
c Fits back of standard frame.
d Fits front of standard frame.

EQUIPMENT PROTECTIONSUBJECT TO CHANGE WITHOUT NOTICE
MODULAR ENCLOSURE SYSTEMS450
6
PROLINE™ EXTERNAL COMPONENTS PROLINE™ ExtERNaL cOMPONENts FOR MOduLaR ENcLOsuREs
SELECTION MATRIX: DOOR ACCESSORIES
PROLINE™ EXTERNAL COMPONENTS PROLINE™ EXTERNAL COMPONENTS FOR MODULAR ENCLOSURES
Spec-00424 G
EQUIPMENT PROTECTION SOLUTIONSSUBJECT TO CHANGE WITHOUT NOTICEMODULAR ENCLOSURE SYSTEMS:1
763.422.2211
763.422.2600
Spec-00424
G
MODULAR ENCLOSURE SYSTEMS:
proline™ ex ternal comp onents
proline™ ex ternal comp onents for mo dular enc losures
SELECTION MATRIX: DOOR ACCESSORIES
Window Doors, Polycarbonate Window Doors, Safety Glass
PDW76
PDW78
PDW146
PDW148
PDW166
PDW168
PDW186
PDW188
PDW206
PDW207
PDW208
PDW226
PDW227
PDW228
PDWG76B
PDWG78B
PDGW146B
PDWG148
PDWG166B
PDWG168
PDWG186
PDWG188B
PDWG206B
PDWG207
PDWG208B
PDWG226
PDWG227
PDWG228B
Flush Swing Handles PFHKBL • • • • • • • • • • • • • • • • • • • • • • • •
PFHPBL •••• •••••••• ••••••••••••
PFHDF •••• •••••••• ••••••••••••
PFHDBL •••• •••••••• ••••••••••••
Flush Bezels PFBS •••• •••••••• ••••••••••••
PSFBS • • • •
PFBSSS • • • • • •
PSFBSSS
L Handle PLHK •••• •••••••• ••••••••••••
Small Flush
Swing Handle
PSHKBL • • • •
Key Inserts PKOTM7 •••••• ••••••••••••••••••••••
PKOTM8 •••••• ••••••••••••••••••••••
PKOTM65 •••••• ••••••••••••••••••••••
PKOSM7 •••••• ••••••••••••••••••••••
PKOSM8 •••••• ••••••••••••••••••••••
PKODBK3 •••••• ••••••••••••••••••••••
PKODB •••••• ••••••••••••••• •••••••
PKOATT •••••• ••••••••••••••••••••••
PKODBK3SS • • • • • • • •
Tamperproofa
Screws & Bit
PSTM6
ATRSDVR
180° Hinge kit PH180 •••••• ••••••••••••••••••••••
Door Stop Kit PDSK • • • • • • • • • • • •
Data Pockets ADP1
ADP2
PDP6S
PDP7S
PDP8S
PDP10S
Steel Sides, Covers and Door Options
a For use on solid sides and solid covers (all catalog numbers).
b Add “SS” to the catalog number for stainless steel.

EQUIPMENT PROTECTION
MODULAR ENCLOSURE SYSTEMS 451
6
PROLINE™ EXTERNAL COMPONENTS PROLINE™ ExtERNaL cOMPONENts FOR MOduLaR ENcLOsuREs
PROLINE™ EXTERNAL COMPONENTS proline™ external components for modular enclosures
Spec-00424 G PH 763.422.2211 • FAX 763.422.2600 • PENTAIRPROTECT.COMEQUIPMENT PROTECTION SOLUTIONS MODULAR ENCLOSURE SYSTEMS: 2
Disconnect
Doors Solid Doors Overlapping Doors
PTDDC168
PTDDC188
PTDDC208
PTDDC1810
PTDDC2010
PDS76RB
PDS78RB
PDS146B
PDS148B
PDS166B
PDS168B
PDS186B
PDS188B
PDS1810B
PDS204
PDS206B
PDS207
PDS208B
PDS2010B
PDS226B
PDS227
PDS228
PDS2210
PTD712
PTD1612
PTD1812B
PTD2012B
PTD2212
PTD1616
PTD1816
PTD2016
• • • • • • • • • • • • • • • • • • • • • • • • • • • • PFHKBL Flush Swing Handles
••••• •••••••••••••••• •••••••PFHPBL
••••• •••••••••••••••• •••••••PFHDF
••••• •••••••••••••••• •••••••PFHDBL
••••• • ••••••••••••••• •••••••PFBS Flush Bezels
• • • PSFBS
••••••• • ••• •• PFBSSS
• • PSFBSSS
••••• • ••••••••••••••• •••••••PLHK L Handle
• • • PSHKBL Small Flush
Swing Handle
•••• ••••••••••••••••••••••• ••• •PKOTM7 Key Inserts
•••••••••••••••••••••••••••••••PKOTM8
•••••••••••••••••••••••••••••••PKOTM65
•••••••••••••••••••••••••••••••PKOSM7
•••••••••••••••••••••••••••••••PKOSM8
•••••••••••••••••••••••••••••••PKODBK3
•••••••••••••••••••••••••••••••PKODB
•••••••••••••••••••••••••••••••PKOATT
PSTM6 Tamperproofa
Screws & Bit
ATRSDVR
•••••••• ••••••••••••••• •••••••PH180 180° Hinge kit
• • • • • • • • • • • • • • • • • • • • • • • • • • • • • PDSK Door Stop Kit
•••• ••••••••••••••••••••••• ••• •ADP1 Data Pockets
•••••••••••••••••••••••••••••••ADP2
• • • • • • • • • PDP6S
• • PDP7S
• • • • • • • • • • • • PDP8S
• • PDP10S

EQUIPMENT PROTECTIONSUBJECT TO CHANGE WITHOUT NOTICE
MODULAR ENCLOSURE SYSTEMS452
6
PROLINE™ EXTERNAL COMPONENTS PROLINE™ ExtERNaL cOMPONENts FOR MOduLaR ENcLOsuREs
SELECTION MATRIX: TOPS AND BASES
PROLINE™ EXTERNAL COMPONENTS PROLINE™ EXTERNAL COMPONENTS FOR MODULAR ENCLOSURES
Spec-00425 H
EQUIPMENT PROTECTION SOLUTIONSSUBJECT TO CHANGE WITHOUT NOTICEMODULAR ENCLOSURE SYSTEMS:1
763.422.2211
763.422.2600
Spec-00425
H
MODULAR ENCLOSURE SYSTEMS:
proline™ ex ternal comp onents
proline™ ex ternal comp onents for mo dular enc losures
SELECTION MATRIX: TOPS AND BASES
Single-Bay
PROLINE Frames
Tops
Solid Topa
Vented Topa, b
Pagoda
Top
Top w/Cutout for
High Performance
Pagodaa
Top Mount Air
Conditionerb
Bases
0-mm Solid Basea100-mm Solid Basea
A B C Steel Stainless Steel Stainless Steel Stainless
700 600 600 PT66 PT66SS PVT3F66_ PPT66 PPTHP66 PAC__T66 PB066 PB066SS PB166 PB166SS
700 800 600 PT86 PT86SS PVT3F86_ PPT86 PPTHP86 PAC__T86 PB086 PB086SS PB186 PB186SS
1400 600 600 PT66 PT66SS PVT3F66_ PPT66 PPTHP66 PAC__T66 PB066 PB066SS PB166 PB166SS
1400 800 500 PT85 PVT3F85_ PPT85 PPTHP85 PAC__T85 PB085 PB185
1400 800 800 PT88 PT88SS PVT3F88_ PPT88 PPTHP88 PAC__T88 PB088 PB088SS PB188 PB188SS
1600 600 400 PT64 PVT3F64_ PPT64 PAC__T64 PB064 PB164
1600 600 600 PT66 PT66SS PVT3F66_ PPT66 PPTHP66 PAC__T64 PB066 PB066SS PB166 PB166SS
1600 600 800 PT68 PT68SS PVT3F68_ PPT68 PPTHP68 PAC__T68 PB068 PB068SS PB168 PB168SS
1600 800 600 PT86 PT86SS PVT3F86_ PPT86 PPTHP86 PAC__T86 PB086 PB086SS PB186 PB186SS
1600 800 800 PT88 PT88SS PVT3F88_ PPT88 PPTHP88 PAC__T88 PB088 PB088SS PB188 PB188SS
1800 600 600 PT66 PT66SS PVT3F66_ PPT66 PPTHP66 PAC__T66 PB066 PB066SS PB166 PB166SS
1800 600 800 PT68 PT68SS PVT3F68_ PPT68 PPTHP68 PAC__T68 PB068 PB068SS PB168 PB168SS
1800 800 400 PT84 PVT3F84_ PPT84 PAC__T84 PB084 PB184
1800 800 500 PT85 PVT3F85_ PPT85 PPTHP85 PAC__T85 PB085 PB185
1800 800 600 PT86 PT86SS PVT3F86_ PPT86 PPTHP86 PAC__T86 PB086 PB086SS PB186 PB186SS
1800 800 800 PT88 PT88SS PVT3F88_ PPT88 PPTHP88 PAC__T88 PB088 PB088SS PB188 PB188SS
1800 1000 500 PT105 PPT105 PPTHP105 PB0105 PB1105
1800 1000 600 PT106 PT106SS PPT106 PPTHP106 PB0106 PB0106SS PB1106 PB1106SS
1800 1000 800 PT108 PT108SS PPT108 PPTHP108 PB0108 PB0108SS PB1108 PB1108SS
2000 600 400 PT64 PVT3F64_ PPT64 PAC__T64 PB064 PB1640
2000 400 500 PT45 PB045 PB145
2000 600 500 PT65 PVT3F65_ PPT65 PPTHP65 PAC__T65 PB065 PB165
2000 400 600 PT46 PB046 PB146
2000 600 600 PT66 PT66SS PVT3F66_ PPT66 PPTHP66 PAC__T66 PB066 PB066SS PB166 PB166SS
2000 600 800 PT68 PT68SS PVT3F68_ PPT68 PPTHP68 PAC__T68 PB068 PB068SS PB168 PB168SS
2000 700 600 PT76 PVT3F76_ PPT76 PPTHP76 PB076 PB176
2000 700 800 PT78 PVT3F78_ PPT78 PPTHP78 PB078 PB178
2000 800 400 PT84 PVT3F84_ PPT84 PAC__T84 PB084 PB184
2000 800 500 PT85 PVT3F85_ PPT85 PPTHP85 PAC__T85 PB085 PB185
2000 800 600 PT86 PT86SS PVT3F86_ PPT86 PPTHP86 PAC__T86 PB086 PB086SS PB186 PB186SS
2000 800 800 PT88 PT88SS PVT3F88_ PPT88 PPTHP88 PAC__T88 PB088 PB088SS PB188 PB188SS
2000 800 900 PT89 PT89 PPTHP89 PB089 PB189
2000 1000 500 PT105 PT105 PPTHP105 PB0105 PB1105
2000 1000 600 PT106 PT106SS PT106 PPTHP106 PB0106 PB0106SS PB1106 PB1106SS
2000 1000 800 PT108 PT108SS PT108 PPTHP108 PB0108 PB0108SS PB1108 PB1108SS
2200 600 600 PT66 PT66SS PVT3F66_ PPT66 PPTHP66 PAC__T66 PB066 PB066SS PB166 PB166SS
2200 600 800 PT68 PT68SS PVT3F68_ PPT68 PPTHP68 PAC__T68 PB068 PB068SS PB168 PB168SS
2200 700 800 PT78 PVT3F78_ PPT78 PPTHP78 PB078 PB178
2200 700 900 PT79 PVT3F79_ PPT79 PPTHP79 PB079 PB179
2200 800 600 PT86 PT86SS PVT3F86_ PPT86 PPTHP86 PAC__T86 PB086 PB086SS PB186 PB186SS
2200 800 800 PT88 PT88SS PVT3F88_ PPT88 PPTHP88 PAC__T88 PB088 PB088SS PB188 PB188SS
2200 1000 500 PT105 PPT105 PPTHP105 PB0105 PB1105
2200 1000 600 PT106 PT106SS PPT106 PPTHP106 PB0106 PB0106SS PB1106 PB1106SS
a Also available with EMC shielding.
b See Thermal Management chapter for selection.
c Two covers required for 200-mm vented plinth base covers.

EQUIPMENT PROTECTION
MODULAR ENCLOSURE SYSTEMS 453
6
PROLINE™ EXTERNAL COMPONENTS PROLINE™ ExtERNaL cOMPONENts FOR MOduLaR ENcLOsuREs
PROLINE™ EXTERNAL COMPONENTS PROLINE™ EXTERNAL COMPONENTS FOR MODULAR ENCLOSURES
Spec-00425 H PH 763.422.2211 • FAX 763.422.2600 • PENTAIRPROTECT.COMEQUIPMENT PROTECTION SOLUTIONS MODULAR ENCLOSURE SYSTEMS: 2
Bases Gland Plates
Single-Bay
PROLINE Frames
100-mm Plinth Base 200-mm Plinth Base 100-mm Vented
Plinth Base Coversa200-mm Vented
Plinth Base Coversa,c Gland Plate for Rack
Angles A B C
PPB166 PPB266 PPBCV1600 PPBCV1600 PGP66ARA 700 600 600
PPB186 PPB286 PPBCV1800 PPBCV1800 PGP86ARA 700 800 600
PPB166 PPB266 PPBCV1600 PPBCV1600 PGP66ARA 1400 600 600
PPB185 PPB285 PPBCV1800 PPBCV1800 PGP85ARA 1400 800 500
PPB188 PPB288 PPBCV1800 PPBCV1800 PGP88ARA 1400 800 800
PPB164 PGP64ARA 1600 600 400
PPB166 PPB266 PPBCV1600 PPBCV1600 PGP66ARA 1600 600 600
PPB168 PPB268 PPBCV1600 PPBCV1600 PGP68ARA 1600 600 800
PPB186 PPB286 PPBCV1800 PPBCV1800 PGP86ARA 1600 800 600
PPB188 PPB288 PPBCV1800 PPBCV1800 PGP88ARA 1600 800 800
PPB166 PPB266 PPBCV1600 PPBCV1600 PGP66ARA 1800 600 600
PPB168 PPB268 PPBCV1600 PPBCV1600 PGP68ARA 1800 600 800
PPB184 PPB284 PGP84ARA 1800 800 400
PPB185 PPB285 PPBCV1800 PPBCV1800 PGP85ARA 1800 800 500
PPB186 PPB286 PPBCV1800 PPBCV1800 PGP86ARA 1800 800 600
PPB188 PPB288 PPBCV1800 PPBCV1800 PGP88ARA 1800 800 800
PPB1105 PPB2105 PPBCV11000 PPBCV11000 PGP105ARA 1800 1000 500
PPB1106 PPB2106 PPBCV11000 PPBCV11000 PGP106ARA 1800 1000 600
PPB1108 PPB2108 PPBCV11000 PPBCV11000 PGP108ARA 1800 1000 800
PPB164 PGP64ARA 2000 600 400
PPB145 PPB245 2000 400 500
PPB165 PPBCV1600 PPBCV1600 PGP65ARA 2000 600 500
PPB146 2000 400 600
PPB166 PPB266 PPBCV1600 PPBCV1600 PGP66ARA 2000 600 600
PPB168 PPB268 PPBCV1600 PPBCV1600 PGP68ARA 2000 600 800
PPB178 PPBCV1700 PPBCV1700 PGP78ARA 2000 700 600
PPB179 PPBCV1700 PPBCV1700 PGP79ARA 2000 700 800
PPB184 PPB284 PGP84ARA 2000 800 400
PPB185 PPB285 PPBCV1800 PPBCV1800 PGP85ARA 2000 800 500
PPB186 PPB286 PPBCV1800 PPBCV1800 PGP86ARA 2000 800 600
PPB188 PPB288 PPBCV1800 PPBCV1800 PGP88ARA 2000 800 800
PPB189 PPB289 PPBCV1800 PPBCV1800 PGP89ARA 2000 800 900
PPB1105 PPB2105 PPBCV11000 PPBCV11000 PGP105ARA 2000 1000 500
PPB1106 PPB2106 PPBCV11000 PPBCV11000 PGP106ARA 2000 1000 600
PPB1108 PPB2108 PPBCV11000 PPBCV11000 PGP108ARA 2000 1000 800
PPB166 PPB266 PPBCV1600 PPBCV1600 PGP66ARA 2200 600 600
PPB168 PPB268 PPBCV1600 PPBCV1600 PGP68ARA 2200 600 800
PPB178 PPBCV1700 PPBCV1700 PGP78ARA 2200 700 800
PPB179 PPBCV1700 PPBCV1700 PGP79ARA 2200 700 900
PPB186 PPB286 PPBCV1800 PPBCV1800 PGP86ARA 2200 800 600
PPB188 PPB288 PPBCV1800 PPBCV1800 PGP88ARA 2200 800 800
PPB1105 PPB2105 PPBCV11000 PPBCV11000 PGP105ARA 2200 1000 500
PPB1106 PPB2106 PPBCV11000 PPBCV11000 PGP106ARA 2200 1000 600
a
Also available with EMC shielding.
c T
wo covers required for 200-mm vented plinth base covers
d Fits front of standard frame.

EQUIPMENT PROTECTIONSUBJECT TO CHANGE WITHOUT NOTICE
MODULAR ENCLOSURE SYSTEMS454
6
PROLINE™ EXTERNAL COMPONENTS PROLINE™ ExtERNaL cOMPONENts FOR MOduLaR ENcLOsuREs
PROLINE™ EXTERNAL COMPONENTS PROLINE™ EXTERNAL COMPONENTS FOR MODULAR ENCLOSURES
Spec-00423 G
EQUIPMENT PROTECTION SOLUTIONSSUBJECT TO CHANGE WITHOUT NOTICEMODULAR ENCLOSURE SYSTEMS:3
763.422.2211
763.422.2600
Spec-00423
G
MODULAR ENCLOSURE SYSTEMS:
proline™ ex ternal comp onents
proline™ ex ternal comp onents for mo dular enc losures
Double-Bay
PROLINE Frames
TopsaBases
Solid Top
Pagoda Top
Top w/Cutout for
High Performance
Pagoda
0-mm Solid Base 100-mm Solid Baseb
A B C Steel Stainless Steel Stainless Steel Stainless
700 1200 600 PT126 PT126SS PPT126 PPTHP126 PB0126 PB0126SS PB1126 PB1126SS
1600 1200 600 PT126 PT126SS PPT126 PPTHP126 PB0126 PB0126SS PB1126 PB1126SS
1600 1200 800 PT128 PT128SS PPT128 PPTHP128 PB0128 PB0128SS PB1128 PB112SS
1800 1200 400 PT124 PPT124 PB0124 PB1124
1800 1200 500 PT125 PPT125 PPTHP125 PB0125 PB1125
1800 1200 600 PT126 PT126SS PPT126 PPTHP126 PB0126 PB0126SS PB1126 PB1126SS
1800 1200 800 PT128 PT128SS PPT128 PPTHP128 PB0128 PB0128SS PB1128 PB1128SS
1800 1600 500 PT165 PPT165 PPTHP165 PB0165 PB1165
1800 1600 600 PT166 PPT166 PPTHP166 PB0166 PB1166
1800 1600 800 PT168 PPT168 PPTHP168 PB0168 PB1168
2000 1200 400 PT124 PPT124 PB0124 PB1124
2000 1200 500 PT125 PPT125 PPTHP125 PB0125 PB1125
2000 1200 600 PT126 PT126SS PPT126 PPTHP126 PB0126 PB0126SS PB1126 PB1126SS
2000 1200 800 PT128 PT128SS PPT128 PPTHP128 PB0128 PB0128SS PB1128 PB1128SS
2000 1600 500 PT165 PPT165 PPTHP165 PB0165 PB1165
2000 1600 600 PT166 PPT166 PPTHP166 PB0166 PB1166
2000 1600 800 PT168 PPT168 PPTHP168 PB0168 PB1168
2200 1200 500 PT125 PPT125 PPTHP125 PB0125 PB1125
2200 1200 600 PT126 PT126SS PPT126 PPTHP126 PB0126 PB0126SS PB1126 PB1126SS
2200 1200 800 PT128 PT128SS PPT128 PPTHP128 PB0128 PB0128SS PB1128 PB1128SS
a Air conditioner tops PTAC126, PTAC128, PTAC166 and PTAC168 are available for mounting single-bay Top Mount Air Conditioners on double-bay frames.
b 100-mm solid bases for single-bay frames will fit double-bay frames. Two bases required for each application

EQUIPMENT PROTECTION
MODULAR ENCLOSURE SYSTEMS 455
6
PROLINE™ EXTERNAL COMPONENTS PROLINE™ ExtERNaL cOMPONENts FOR MOduLaR ENcLOsuREs
PROLINE™ EXTERNAL COMPONENTS PROLINE™ EXTERNAL COMPONENTS FOR MODULAR ENCLOSURES
Spec-00423 G PH 763.422.2211 • FAX 763.422.2600 • PENTAIRPROTECT.COMEQUIPMENT PROTECTION SOLUTIONS MODULAR ENCLOSURE SYSTEMS: 4
Bases Gland Plate
Double-Bay
PROLINE Frames
100-mm Plinth Base 200-mm Plinth Base
100-mm Vented
Plinth
Base Coversa
200-mm Vented
Plinth
Base Coversa,b Gland Plate for Rack
Angles A B C
PPB1126 PPB2126 PPBCV11200 PPBCV11200 PGP66ARA 700 1200 600
PPB1126 PPB2126 PPBCV11200 PPBCV11200 PGP66ARA 1600 1200 600
PPB1128 PPB2128 PPBCV11200 PPBCV11200 PGP68ARA 1600 1200 800
PPB1124 PPB2124 PPBCV11200 PPBCV11200 PGP64ARA 1800 1200 400
PPB1125 PPB2125 PPBCV11200 PPBCV11200 PGP65ARA 1800 1200 500
PPB1126 PPB2126 PPBCV11200 PPBCV11200 PGP66ARA 1800 1200 600
PPB1128 PPB2128 PPBCV11200 PPBCV11200 PGP68ARA 1800 1200 800
PPB1165 PPB2165 PPBCV11600 PPBCV11600 PGP85ARA 1800 1600 500
PPB1166 PPB2166 PPBCV11600 PPBCV11600 PGP86ARA 1800 1600 600
PPB1168 PPB2168 PPBCV11600 PPBCV11600 PGP88ARA 1800 1600 800
PPB1124 PPB2124 PPBCV11200 PPBCV11200 PGP64ARA 2000 1200 400
PPB1125 PPB2125 PPBCV11200 PPBCV11200 PGP65ARA 2000 1200 500
PPB1126 PPB2126 PPBCV11200 PPBCV11200 PGP66ARA 2000 1200 600
PPB1128 PPB2128 PPBCV11200 PPBCV11200 PGP68ARA 2000 1200 800
PPB1165 PPB2165 PPBCV11600 PPBCV11600 PGP85ARA 2000 1600 500
PPB1166 PPB2166 PPBCV11600 PPBCV11600 PGP86ARA 2000 1600 600
PPB1168 PPB2168 PPBCV11600 PPBCV11600 PGP88ARA 2000 1600 800
PPB1125 PPB2125 PPBCV11200 PPBCV11200 PGP65ARA 2200 1200 500
PPB1126 PPB2126 PPBCV11200 PPBCV11200 PGP66ARA 2200 1200 600
PPB1128 PPB2128 PPBCV11200 PPBCV11200 PGP68ARA 2200 1200 800
a
Use with a standard plinth base.
b
Two covers required for 200-mm vented plinth base cover

EQUIPMENT PROTECTIONSUBJECT TO CHANGE WITHOUT NOTICE
MODULAR ENCLOSURE SYSTEMS456
6
PROLINE™ EXTERNAL COMPONENTS PROLINE™ dOORs, cOvERs aNd sIdEs
PROLINE™ dOORs, cOvERs aNd sIdEs
DOOR GASKETING, SHIELDING AND DOOR BARS OVERVIEW
Seamless Foam-in-Place Gasketing
EMC Shielding
Door Bars

EQUIPMENT PROTECTION
MODULAR ENCLOSURE SYSTEMS 457
6
PROLINE™ EXTERNAL COMPONENTS PROLINE™ dOORs, cOvERs aNd sIdEs
SOLID DOORS
Bulletin: P20, P20eM, P20S
Catalog Number Door Type Gauge
Fits Frame
A x B H x W (mm) H x W (in.)
PDS76R Steel 16 700 x 600 639 x 592 25.16 x 23.31
PDS76SS Stainless Steel 16 700 x 600 639 x 592 25.16 x 23.31
PDS78R Steel 14 700 x 800 639 x 792 25.16 x 31.18
PDS78RHF2 EMC 14 700 x 800 639 x 792 25.16 x 31.18
PDS78SS Stainless Steel 14 700 x 800 639 x 792 25.16 x 31.18
PDS146 Steel 16 1400 x 600 1339 x 592 52.72 x 23.31
PDS146HF2 EMC 16 1400 x 600 1339 x 592 52.72 x 23.31
PDS146SS Stainless Steel 16 1400 x 600 1339 x 592 52.72 x 23.31
PDS148 Steel 14 1400 x 800 1339 x 792 52.72 x 31.18
PDS148HF2 EMC 14 1400 x 800 1339 x 792 52.72 x 31.18
PDS148SS Stainless Steel 14 1400 x 800 1339 x 792 52.72 x 31.18
PDS165 Steel 16 1600 x 500 1539 x 492 60.59 x 19.69
PDS166 Steel 16 1600 x 600 1539 x 592 60.59 x 23.31
PDS166SS Stainless Steel 16 1600 x 600 1539 x 592 60.59 x 23.31
PDS168 Steel 14 1600 x 800 1539 x 792 60.59 x 31.18
PDS185 Steel 16 1800 x 500 1739 x 492 68.46 x 19.69
PDS186 Steel 16 1800 x 600 1739 x 592 68.46 x 23.31
PDS186HF2 EMC 16 1800 x 600 1739 x 592 68.46 x 23.31
PDS186SS Stainless Steel 16 1800 x 600 1739 x 592 68.46 x 23.31
PDS188 Steel 14 1800 x 800 1739 x 792 68.46 x 31.18
PDS188HF2 EMC 14 1800 x 800 1739 x 792 68.46 x 31.18
PDS188SS Stainless Steel 14 1800 x 800 1739 x 792 68.46 x 31.18
PDS1810 Steel 14 1800 x 1000 1739 x 992 68.46 x 39.06
PDS1810HF2 EMC 14 1800 x 1000 1739 x 992 68.46 x 39.06
PDS204 Steel 16 2000 x 400 1939 x 392 76.34 x 15.75
PDS205 Steel 16 2000 x 500 1939 x 492 76.34 x 19.69
PDS206 Steel 16 2000 x 600 1939 x 592 76.34 x 23.31
PDS206HF2 EMC 16 2000 x 600 1939 x 592 76.34 x 23.31
PDS206SS Stainless Steel 16 2000 x 600 1939 x 592 76.34 x 23.31
PDS207 Steel 16 2000 x 700 1939 x 692 76.34 x 27.24
PDS207HF2 EMC 16 2000 x 700 1939 x 692 76.34 x 27.24
PDS208 Steel 14 2000 x 800 1939 x 792 76.34 x 31.18
PDS208HF2 EMC 14 2000 x 800 1939 x 792 76.34 x 31.18
PDS208SS Stainless Steel 14 2000 x 800 1939 x 792 76.34 x 31.18
PDS2010 Steel 14 2000 x 1000 1939 x 992 76.34 x 39.06
PDS2010HF2 EMC 14 2000 x 1000 1939 x 992 76.34 x 39.06
PDS2010SS Stainless Steel 14 2000 x 1000 1939 x 992 76.34 x 39.06
PDS225 Steel 16 2200 x 500 2139 x 492 84.21 x 19.69
PDS226 Steel 16 2200 x 600 2139 x 592 84.21 x 23.31
PDS226SS Stainless Steel 16 2200 x 600 2139 x 592 84.21 x 23.31
PDS227 Steel 16 2200 x 700 2139 x 692 84.21 x 27.24
PDS227HF2 EMC 16 2200 x 700 2139 x 692 84.21 x 27.24
PDS228 Steel 14 2200 x 800 2139 x 792 84.21 x 31.18
PDS228SS Stainless Steel 14 2200 x 800 2139 x 792 84.21 x 31.18
PDS2210 Steel 14 2200 x 1000 2139 x 992 84.21 x 39.06

EQUIPMENT PROTECTIONSUBJECT TO CHANGE WITHOUT NOTICE
MODULAR ENCLOSURE SYSTEMS458
6
PROLINE™ EXTERNAL COMPONENTS PROLINE™ dOORs, cOvERs aNd sIdEs
SOLID COVERS
Bulletin: P20, P20eM, P20S
Catalog Number Cover Type Gauge
Fits Frame
A x B H x W (mm) H x W (in.)
PCS76 Steel 16 700 x 600 639 x 592 25.16 x 23.31
PCS76HF2 EMC 16 700 x 600 639 x 592 25.16 x 23.31
PCS76SS Stainless Steel 16 700 x 600 639 x 592 25.16 x 23.31
PCS78 Steel 14 700 x 800 639 x 792 25.16 x 31.18
PCS78HF2 EMC 14 700 x 800 639 x 792 25.16 x 31.18
PCS78SS Stainless Steel 14 700 x 800 639 x 792 25.16 x 31.18
PCS146 Steel 16 1400 x 600 1339 x 592 52.72 x 23.31
PCS146HF2 EMC 16 1400 x 600 1339 x 592 52.72 x 23.31
PCS146SS Stainless Steel 16 1400 x 600 1339 x 592 52.72 x 23.31
PCS148 Steel 14 1400 x 800 1339 x 792 52.72 x 31.18
PCS148HF2 EMC 14 1400 x 800 1339 x 792 52.72 x 31.18
PCS148SS Stainless Steel 14 1400 x 800 1339 x 792 52.72 x 31.18
PCS166 Steel 16 1600 x 600 1539 x 592 60.59 x 23.31
PCS166SS Stainless Steel 16 1600 x 600 1539 x 592 60.59 x 23.31
PCS168 Steel 14 1600 x 800 1539 x 792 60.59 x 31.18
PCS168HF2 EMC 14 1600 x 800 1539 x 792 60.59 x 31.18
PCS186 Steel 16 1800 x 600 1739 x 592 68.46 x 23.31
PCS186HF2 EMC 16 1800 x 600 1739 x 592 68.46 x 23.31
PCS186SS Stainless Steel 16 1800 x 600 1739 x 592 68.46 x 23.31
PCS188 Steel 14 1800 x 800 1739 x 792 68.46 x 31.18
PCS188HF2 EMC 14 1800 x 800 1739 x 792 68.46 x 31.18
PCS188SS Stainless Steel 14 1800 x 800 1739 x 792 68.46 x 31.18
PCS1810 Steel 14 1800 x 1000 1739 x 992 68.46 x 39.06
PCS1810HF2 EMC 14 1800 x 1000 1739 x 992 68.46 x 39.06
PCS1810SS Stainless Steel 14 1800 x 1000 1739 x 992 68.46 x 39.06
PCS204 Steel 16 2000 x 400 1939 x 392 76.34 x 15.75
PCS206 Steel 16 2000 x 600 1939 x 592 76.34 x 23.31
PCS206HF2 EMC 16 2000 x 600 1939 x 592 76.34 x 23.31
PCS206SS Stainless Steel 16 2000 x 600 1939 x 592 76.34 x 23.31
PCS207 Steel 16 2000 x 700 1939 x 692 76.34 x 27.24
PCS207HF2 EMC 16 2000 x 700 1939 x 692 76.34 x 27.24
PCS208 Steel 14 2000 x 800 1939 x 792 76.34 x 31.18
PCS208HF2 EMC 14 2000 x 800 1939 x 792 76.34 x 31.18
PCS208SS Stainless Steel 14 2000 x 800 1939 x 792 76.34 x 31.18
PCS2010 Steel 14 2000 x 1000 1939 x 992 76.34 x 39.06
PCS2010HF2 EMC 14 2000 x 1000 1939 x 992 76.34 x 39.06
PCS2010SS Stainless Steel 14 2000 x 1000 1939 x 992 76.34 x 39.06
PCS226 Steel 16 2200 x 600 2139 x 592 84.21 x 23.31
PCS226HF2 EMC 16 2200 x 600 2139 x 592 84.21 x 23.31
PCS226SS Stainless Steel 16 2200 x 600 2139 x 592 84.21 x 23.31
PCS227 Steel 16 2200 x 700 2139 x 692 84.21 x 27.24
PCS227HF2 EMC 16 2200 x 700 2139 x 692 84.21 x 27.24
PCS228 Steel 14 2200 x 800 2139 x 792 84.21 x 31.18
PCS228HF2 EMC 14 2200 x 800 2139 x 792 84.21 x 31.18
PCS228SS Stainless Steel 14 2200 x 800 2139 x 792 84.21 x 31.18
PCS2210 Steel 14 2200 x 1000 2139 x 992 84.21 x 39.06
PCS2210HF2 EMC 14 2200 x 1000 2139 x 992 84.21 x 39.06

EQUIPMENT PROTECTION
MODULAR ENCLOSURE SYSTEMS 459
6
PROLINE™ EXTERNAL COMPONENTS PROLINE™ dOORs, cOvERs aNd sIdEs
SOLID SIDES
Bulletin: P20, P20eM, P20S
Catalog Number Type Gauge
Fits Frame
A x C H x W (mm) H x W (in.)
PSS76 Steel 16 700 x 600 639 x 553 25.16 x 21.77
PSS76HF2 EMC 16 700 x 600 639 x 553 25.16 x 21.77
PSS76SS Stainless Steel 16 700 x 600 639 x 553 25.16 x 21.77
PSS145 Steel 16 1400 x 500 1339 x 453 52.72 x 17.83
PSS145HF2 EMC 16 1400 x 500 1339 x 453 52.72 x 17.83
PSS146 Steel 16 1400 x 600 1339 x 553 52.72 x 21.77
PSS146HF2 EMC 16 1400 x 600 1339 x 553 52.72 x 21.77
PSS146SS Stainless Steel 16 1400 x 600 1339 x 553 52.72 x 21.77
PSS148 Steel 16 1400 x 800 1339 x 753 52.72 x 29.65
PSS148HF2 EMC 16 1400 x 800 1339 x 753 52.72 x 29.65
PSS148SS Stainless Steel 16 1400 x 800 1339 x 753 52.72 x 29.65
PSS164 Steel 16 1600 x 400 1539 x 353 60.59 x 13.90
PSS164HF2 EMC 16 1600 x 400 1539 x 353 60.59 x 13.90
PSS165 Steel 16 1600 x 500 1539 x 453 60.59 x 17.83
PSS165HF2 EMC 16 1600 x 500 1539 x 453 60.59 x 17.83
PSS166 Steel 16 1600 x 600 1539 x 553 60.59 x 21.77
PSS166SS Stainless Steel 16 1600 x 600 1539 x 553 60.59 x 21.77
PSS168 Steel 16 1600 x 800 1539 x 753 60.59 x 29.65
PSS168HF2 EMC 14 1600 x 800 1539 x 753 60.59 x 29.65
PSS168SS Stainless Steel 16 1600 x 800 1539 x 753 60.59 x 29.65
PSS184 Steel 16 1800 x 400 1739 x 353 68.46 x 13.90
PSS184HF2 EMC 16 1800 x 400 1739 x 353 68.46 x 13.90
PSS185 Steel 16 1800 x 500 1739 x 453 68.46 x 17.83
PSS185HF2 EMC 16 1800 x 500 1739 x 453 68.46 x 17.83
PSS186 Steel 16 1800 x 600 1739 x 553 68.46 x 21.77
PSS186HF2 EMC 16 1800 x 600 1739 x 553 68.46 x 21.77
PSS186SS Stainless Steel 16 1800 x 600 1739 x 553 68.46 x 21.77
PSS188 Steel 16 1800 x 800 1739 x 753 68.46 x 29.65
PSS188HF2 EMC 16 1800 x 800 1739 x 753 68.46 x 29.65
PSS188SS Stainless Steel 16 1800 x 800 1739 x 753 68.46 x 29.65
PSS204 Steel 16 2000 x 400 1939 x 353 76.34 x 13.90
PSS204HF2 EMC 16 2000 x 400 1939 x 353 76.34 x 13.90
PSS205 Steel 16 2000 x 500 1939 x 453 76.34 x 17.83
PSS206 Steel 16 2000 x 600 1939 x 553 76.34 x 21.77
PSS206HF2 EMC 16 2000 x 600 1939 x 553 76.34 x 21.77
PSS206SS Stainless Steel 16 2000 x 600 1939 x 553 76.34 x 21.77
PSS208 Steel 16 2000 x 800 1939 x 753 76.34 x 29.65
PSS208HF2 EMC 16 2000 x 800 1939 x 753 76.34 x 29.65
PSS208SS Stainless Steel 16 2000 x 800 1939 x 753 76.34 x 29.65
PSS209 Steel 14 2000 x 900 1939 x 853 76.34 x 33.58
PSS209HF2 EMC 14 2000 x 900 1939 x 853 76.34 x 33.58
PSS225 Steel 16 2200 x 500 2139 x 453 84.21 x 17.83
PSS225HF2 EMC 16 2200 x 500 2139 x 453 84.21 x 17.83
PSS226 Steel 16 2200 x 600 2139 x 553 84.21 x 21.77
PSS226HF2 EMC 16 2200 x 600 2139 x 553 84.21 x 21.77
PSS228 Steel 16 2200 x 800 2139 x 753 84.21 x 29.65
PSS228HF2 EMC 16 2200 x 800 2139 x 753 84.21 x 29.65
PSS228SS Stainless Steel 16 2200 x 800 2139 x 753 84.21 x 29.65
PSS229 Steel 14 2200 x 900 2139 x 853 84.21 x 33.58
PSS229HF2 EMC 14 2200 x 900 2139 x 853 84.21 x 33.58

EQUIPMENT PROTECTIONSUBJECT TO CHANGE WITHOUT NOTICE
MODULAR ENCLOSURE SYSTEMS460
6
PROLINE™ EXTERNAL COMPONENTS PROLINE™ dOORs, cOvERs aNd sIdEs
WINDOW DOORS
Bulletin: P20, P20S
Catalog Number
Fits Frame
A x B
Window Door
Type
Safety Glass
H x W
mm/in.
Window Size
M x N
mm/in.
PDWG76 700 x 600 Mild Steel and
Safety Glass
639 x 593
25.16 x 23.34
518 x 446
20.38 x 17.55
PDW76 700 x 600 Mild Steel and
Polycarbonate
639 x 593
25.16 x 23.34
518 x 446
20.38 x 17.55
PDWG76SS 700 x 600 Stainless Steel
and Safety Glass
639 x 592
25.16 x 23.30
518 x 446
20.38 x 17.55
PDWG78 700 x 800 Mild Steel and
Safety Glass
639 x 793
25.16 x 31.22
518 x 646
20.38 x 25.42
PDW78 700 x 800 Mild Steel and
Polycarbonate
639 x 793
25.16 x 31.22
518 x 646
20.38 x 25.42
PDWG78SS 700 x 800 Stainless Steel
and Safety Glass
639 x 792
25.16 x 31.17
518 x 646
20.38 x 25.42
PDWG146 1400 x 600 Mild Steel and
Safety Glass
1339 x 593
52.72 x 23.34
1218 x 446
47.94 x 17.55
PDW146 1400 x 600 Mild Steel and
Polycarbonate
1339 x 593
52.72 x 23.34
1218 x 446
47.94 x 17.55
PDWG146SS 1400 x 600 Stainless Steel
and Safety Glass
1339 x 592
52.72 x 23.30
1218 x 446
47.94 x 17.55
PDWG148 1400 x 800 Mild Steel and
Safety Glass
1339 x 793
52.72 x 31.22
1218 x 646
47.94 x 25.42
PDW148 1400 x 800 Mild Steel and
Polycarbonate
1339 x 793
52.72 x 31.22
1218 x 646
47.94 x 25.42
PDWG166 1600 x 600 Mild Steel and
Safety Glass
1539 x 593
60.59 x 23.34
1418 x 446
55.81 x 17.55
PDW166 1600 x 600 Mild Steel and
Polycarbonate
1539 x 593
60.59 x 23.34
1418 x 446
55.81 x 17.55
PDWG166SS 1600 x 600 Stainless Steel
and Safety Glass
1539 x 592
60.59 x 23.30
1418 x 446
55.81 x 17.55
PDWG168 1600 x 800 Mild Steel and
Safety Glass
1539 x 793
60.59 x 31.22
1418 x 646
55.81 x 25.42
PDWG186 1800 x 600 Mild Steel and
Safety Glass
1739 x 593
68.46 x 23.34
1618 x 446
63.69 x 17.55
PDW186 1800 x 600 Mild Steel and
Polycarbonate
1739 x 593
68.46 x 23.34
1618 x 446
63.69 x 17.55
PDWG188 1800 x 800 Mild Steel and
Safety Glass
1739 x 793
68.46 x 31.22
1618 x 646
63.69 x 25.42
PDW188 1800 x 800 Mild Steel and
Polycarbonate
1739 x 793
68.46 x 31.22
1618 x 646
63.69 x 25.42
PDWG188SS 1800 x 800 Stainless Steel
and Safety Glass
1739 x 792
68.46 x 31.17
1618 x 646
63.69 x 25.42
PDWG206 2000 x 600 Mild Steel and
Safety Glass
1939 x 593
76.34 x 23.34
1818 x 446
71.56 x 17.55
PDW206 2000 x 600 Mild Steel and
Polycarbonate
1939 x 593
76.34 x 23.34
1818 x 446
71.56 x 17.55
PDWG206SS 2000 x 600 Stainless Steel
and Safety Glass
1939 x 592
76.34 x 23.30
1818 x 446
71.56 x 17.55
PDWG207 2000 x 700 Mild Steel and
Safety Glass
1939 x 693
76.34 x 27.28
1818 x 546
71.56 x 21.48
PDW207 2000 x 700 Mild Steel and
Polycarbonate
1939 x 693
76.34 x 27.28
1818 x 546
71.56 x 21.48
PDWG208 2000 x 800 Mild Steel and
Safety Glass
1939 x 793
76.34 x 31.22
1818 x 646
71.56 x 25.42
PDW208 2000 x 800 Mild Steel and
Polycarbonate
1939 x 793
76.34 x 31.22
1818 x 646
71.56 x 25.42
PDWG208SS 2000 x 800 Stainless Steel
and Safety Glass
1939 x 792
76.34 x 31.17
1818 x 646
71.56 x 25.42
PDWG226 2200 x 600 Mild Steel and
Safety Glass
2139 x 593
84.21 x 23.34
2018 x 446
79.43 x 17.55
PDW226 2200 x 600 Mild Steel and
Polycarbonate
2139 x 593
84.21 x 23.34
2018 x 446
79.43 x 17.55
PDW227 2200 x 700 Mild Steel and
Polycarbonate
2139 x 693
84.21 x 27.28
2018 x 546
79.43 x 21.48
PDWG228 2200 x 800 Mild Steel and
Safety Glass
2139 x 793
84.21 x 31.22
2018 x 646
79.43 x 25.42
PDW228 2200 x 800 Mild Steel and
Polycarbonate
2139 x 793
84.21 x 31.22
2018 x 646
79.43 x 25.42
PDWG228SS 2200 x 800 Stainless Steel
and Safety Glass
2139 x 792
84.21 x 31.17
2018 x 646
79.43 x 25.42

EQUIPMENT PROTECTION
MODULAR ENCLOSURE SYSTEMS 461
6
PROLINE™ EXTERNAL COMPONENTS PROLINE™ dOORs, cOvERs aNd sIdEs
DRESS FRAME
Bulletin: P20
Catalog Number Nominal Size H x W (mm) H x W (in.)
PDF76 700 x 600 639 x 591 25.16 x 23.26
PDF146 1400 x 600 1339 x 591 52.72 x 23.26
PDF166 1600 x 600 1539 x 591 60.56 x 23.26
PDF186 1800 x 600 1739 x 591 68.47 x 23.26
PDF206 2000 x 600 1939 x 591 76.34 x 23.26
PDF226 2200 x 600 2139 x 591 84.21 x 23.26

EQUIPMENT PROTECTIONSUBJECT TO CHANGE WITHOUT NOTICE
MODULAR ENCLOSURE SYSTEMS462
6
PROLINE™ EXTERNAL COMPONENTS PROLINE™ dOORs, cOvERs aNd sIdEs
DISCONNECT DOOR FOR PROLINE™ ENCLOSURES
Allen-Bradley
Siemens ITE
Bulletin: P20, P20DC

EQUIPMENT PROTECTION
MODULAR ENCLOSURE SYSTEMS 463
6
PROLINE™ EXTERNAL COMPONENTS PROLINE™ dOORs, cOvERs aNd sIdEs
Catalog Number Cutout Provision
Fits Frame A x B
mm/in.
H x W
mm/in.
V
mm/in.
Z
mm/in.
PTDDC166 Preferred right-hand 1600 x 600 1539 x 594
60.59 x 23.39
221
8.70
269
10.57
PLTDDC166 Preferred left-hand 1600 x 600 1539 x 594
60.59 x 23.39
221
8.70
269
10.57
PTDDC168 Preferred right-hand 1600 x 800 1539 x 794
60.59 x 31.26
221
8.70
269
10.57
PLTDDC168 Preferred left-hand 1600 x 800 1539 x 794
60.59 x 31.26
221
8.70
269
10.57
PTDDC186 Preferred right-hand 1800 x 600 1739 x 594
68.46 x 23.39
321
12.64
369
14.51
PTDDC188 Preferred right-hand 1800 x 800 1739 x 794
68.46 x 31.26
321
12.64
369
14.51
PLTDDC188 Preferred left-hand 1800 x 800 1739 x 794
68.46 x 31.26
321
12.64
369
14.51
PTDDC206 Preferred right-hand 2000 x 600 1939 x 594
76.34 x 23.39
421
16.57
469
18.45
PLTDDC206 Preferred left-hand 2000 x 600 1939 x 594
76.34 x 23.39
421
16.57
469
18.45
PTDDC208 Preferred right-hand 2000 x 800 1939 x 794
76.34 x 31.26
421
16.57
469
18.45
PLTDDC208 Preferred left-hand 2000 x 800 1939 x 794
76.34 x 31.26
421
16.57
469
18.45
PTDDC1810 Preferred right-hand 1800 x 1000 1739 x 994
68.46 x 39.13
321
12.64
369
14.51
PLTDDC1810 Preferred left-hand 1800 x 1000 1739 x 994
68.46 x 39.13
321
12.64
369
14.51
PTDDC2010 Preferred right-hand 2000 x 1000 1939 x 994
76.34 x 39.13
421
16.57
469
18.45
PLTDDC2010 Preferred left-hand 2000 x 1000 1939 x 994
76.34 x 39.13
421
16.57
469
18.45
PTDLDC206 Large right-hand 2000 x 600 1939 x 594
76.34 x 23.39
435
17.13
483
19.01
PTDLDC208 Large right-hand 2000 x 800 1939 x 794
76.34 x 31.26
435
17.13
483
19.01
PTDLDC2010 Large right-hand 2000 x 1000 2000 x 1000
76.34 x 39.13
435
17.13
483
19.01

EQUIPMENT PROTECTIONSUBJECT TO CHANGE WITHOUT NOTICE
MODULAR ENCLOSURE SYSTEMS464
6
PROLINE™ EXTERNAL COMPONENTS PROLINE™ dOORs, cOvERs aNd sIdEs
ELECTRICAL INTERLOCK
INDUSTRY STANDARDS
APPLICATION
12
®
Installation
SPECIFICATIONS
Door handles and latching mechanisms are not included.
Bulletin: P20DC
Catalog Number
A @ 120 V/60 Hz
Normal/Inrush
A @ 240 V/60 Hz
Normal/Inrush
A @ 480 V/60 Hz
Normal/Inrush
A @ 110 V/50 Hz
Normal/Inrush
A @ 220 V/50 Hz
Normal/Inrush
A @ 440 V/50 Hz
Normal/Inrush
PEK115NDH .100/.63 .120/.69
PEK230NDH .050/.32 .060/.35
PEK460NDH .025/.16 .030/.18

EQUIPMENT PROTECTION
MODULAR ENCLOSURE SYSTEMS 465
6
PROLINE™ EXTERNAL COMPONENTS PROLINE™ dOORs, cOvERs aNd sIdEs
MECHANICAL INTERLOCK
Mechanical Interlock
Front-to-Back Interlock
Bulletin: P20
Catalog Number Description
PMLMAK Master Door Activator Kit
PMLSK Door Slave Kit
PMLEKExtension Kit
PMLFBFront-to-Back Kit
For Catalog No. PMLMAK, order 1 for master door.
For Catalog No. PMLSK, order 1 for each slave door (wIll accommodate single door, window door and
overlapping door).

EQUIPMENT PROTECTIONSUBJECT TO CHANGE WITHOUT NOTICE
MODULAR ENCLOSURE SYSTEMS466
6
PROLINE™ EXTERNAL COMPONENTS PROLINE™ baRRIER PaNELs, sIdE dOOR adaPtERs
PROLINE™ baRRIER PaNELs, sIdE dOOR adaPtERs
BARRIER PANELS
Barrier Panels
EMC Barrier Panels
Bulletin: P20
Catalog Number Type Description
H
mm/in.
W
mm/in.
PBB165 Painted Fits between frames 1600-mm tall x 500-mm deep 1539
60.59
453
17.83
PBB165EMC EMC Fits between frames 1600-mm tall x 500-mm deep 1539
60.59
453
17.83
PBB166 Painted Fits between frames 1600-mm tall x 600-mm deep 1539
60.59
553
21.77
PBB166EMC EMC Fits between frames 1600-mm tall x 600-mm deep 1539
60.59
553
21.77
PBB185 Painted Fits between frames 1800-mm tall x 500-mm deep 1739
68.47
453
17.83
PBB185EMC EMC Fits between frames 1800-mm tall x 500-mm deep 1739
68.47
453
17.83
PBB186 Painted Fits between frames 1800-mm tall x 600-mm deep 1739
68.47
553
21.77
PBB186EMC EMC Fits between frames 1800-mm tall x 600-mm deep 1739
68.47
553
21.77
PBB188 Painted Fits between frames 1800-mm tall x 800-mm deep 1739
68.47
753
29.65
PBB205 Painted Fits between frames 2000-mm tall x 500-mm deep 1939
76.34
453
17.83
PBB205EMC EMC Fits between frames 2000-mm tall x 500-mm deep 1939
76.34
453
17.83
PBB206 Painted Fits between frames 2000-mm tall x 600-mm deep 1939
76.34
553
21.77
PBB206EMC EMC Fits between frames 2000-mm tall x 600-mm deep 1939
76.34
553
21.77
PBB208 Painted Fits between frames 2000-mm tall x 800-mm deep 1939
76.34
753
29.65
PBB225 Painted Fits between frames 2200-mm tall x 500-mm deep 2139
84.22
453
17.83
PBB225EMC EMC Fits between frames 2200-mm tall x 500-mm deep 2139
84.22
453
17.83
PBB226 Painted Fits between frames 2200-mm tall x 600-mm deep 2139
84.22
553
21.77
PBB226EMC EMC Fits between frames 2200-mm tall x 600-mm deep 2139
84.22
553
21.77
PBB228 Painted Fits between frames 2200-mm tall x 800-mm deep 2139
84.22
753
29.65
PBB228EMC EMC Fits between frames 2200-mm tall x 800-mm deep 2139
84.22
753
29.65

EQUIPMENT PROTECTION
MODULAR ENCLOSURE SYSTEMS 467
6
PROLINE™ EXTERNAL COMPONENTS PROLINE™ baRRIER PaNELs, sIdE dOOR adaPtERs
SIDE DOOR ADAPTERS
Bulletin: P20
Catalog Number Description
PCE16650 Fits frames 1600-mm tall x 600-mm deep
PCE18550 Fits frames 1800-mm tall x 500-mm deep
PCE18650 Fits frames 1800-mm tall x 600-mm deep
PCE18850 Fits frames 1800-mm tall x 800-mm deep
PCE20550 Fits frames 2000-mm tall x 500-mm deep
PCE20650 Fits frames 2000-mm tall x 600-mm deep
PCE20850 Fits frames 2000-mm tall x 800-mm deep
PCE22550 Fits frames 2200-mm tall x 500-mm deep
PCE22850 Fits frames 2200-mm tall x 800-mm deep

EQUIPMENT PROTECTIONSUBJECT TO CHANGE WITHOUT NOTICE
MODULAR ENCLOSURE SYSTEMS468
6
PROLINE™ EXTERNAL COMPONENTS PROLINE™ dOOR accEssORIEs
PROLINE™ dOOR accEssORIEs
FLUSH SWING HANDLES
Handle with Screwdriver Defeater
Handle with Keylock
Handle for Padlock
Handle with DIN Profile Provision
Bulletin: P20
Catalog Number Description
PFHDF Flush Handle with Defeater
PFHKBL Keylocking Flush Handle
PFHPBL Padlocking Flush Handle
PFHDBL DIN Profile Flush Handle
FLUSH BEZELS Bezel with Insert
Small Bezel with Insert
Bulletin: P20, P20S
Catalog Number Description
PFBS Flush Bezel with insert
PSFBS Small Flush Bezel with Insert
PFBSSS Large Flush Bezel with Stainless Steel Insert
L HANDLE
Bulletin: P20
Catalog Number Description
PLHK L Handle with 2 keys and logo slot, key code 333

EQUIPMENT PROTECTION
MODULAR ENCLOSURE SYSTEMS 469
6
PROLINE™ EXTERNAL COMPONENTS PROLINE™ dOOR accEssORIEs
SMALL FLUSH SWING HANDLE
Bulletin: P20
Catalog Number Description
PSHKBL One handle and two keys
KEY INSERTS
Bulletin: P20, P20S
Catalog Number Description
PKOTM7 7-mm triangle
PKOTM8 8-mm triangle
PKOTM65 CNOMO
PKOSM7 7-mm square
PKOSM8 8-mm square
PKODBK3 Double-bit with 3-mm pin
PKODBK3SS Double-bit insert
PADLOCK KIT
Bulletin: P20
Catalog Number Description
PFHPK Padlock Kit
DIN LOCK INSERTS (FOR DIN PROFILE HANDLE ONLY)
All DIN Lock Inserts are zinc die-cast.
Bulletin: DPY, P20
Catalog Number Description
PKOSLFH Slotted insert profile cylinder
PKOTM7FH 7-mm triangle insert profile cylinder
PKOSM7FH 7-mm square insert profile cylinder
PKOTM8FH 8-mm triangle insert profile cylinder
PKODBK3FH Double-bit 3-mm insert profile cylinder
PDKL DIN keylock, 2 keys included, key code 333
PDKLRKPR DIN Lock Kit for PROLINE DataCom doors
DIN profile inserts are used with DIN flush swing handles. One key is included (except for slotted insert).
FOLDING SHELF
Bulletin: P20
Catalog Number Description
PSHDM Fits door widths 600, 700, 800 and 1000 mm

EQUIPMENT PROTECTIONSUBJECT TO CHANGE WITHOUT NOTICE
MODULAR ENCLOSURE SYSTEMS470
6
PROLINE™ EXTERNAL COMPONENTS PROLINE™ dOOR accEssORIEs
DOOR BAR GRID STRAPS
Bulletin: P20
Catalog Number Description
PGH1S4D Fits 400-mm wide door
PGH1S5D Fits 500-mm wide door
PGH1S6D Fits 600-mm wide door
PGH1S7D Fits 700-mm wide door
PGH1S8D Fits 800-mm wide door
PGH1S10D Fits 1000-mm wide door
180DEGREE HINGE KIT
Bulletin: P20
Catalog Number Description
PH180 180-Degree Hinge Kit
DOOR STOP KIT
Bulletin: P20
Catalog Number Description
PDSK Door Stop Kit
DOOR SUPPORT ROLLER KIT
Bulletin: P20
Catalog Number Description
PDSRKL Door Support Roller Kit

EQUIPMENT PROTECTION
MODULAR ENCLOSURE SYSTEMS 471
6
PROLINE™ EXTERNAL COMPONENTS PROLINE™ dOOR accEssORIEs
THERMOPLASTIC DATA POCKET
Bulletin: uX1Y
Catalog Number Description
Size L x W
in./mm
ADP1 Small pocket 6.00 x 6.00
152 x 152
ADP2 Large pocket 12.00 x 12.00
305 x 305
STEEL DATA POCKET
Bulletin: P20
Catalog Number AxBxC in./mm Description
PDP1 16.46 x 8.82 x 2.83
418 x 224 x 72
Single size fits all door widths

EQUIPMENT PROTECTIONSUBJECT TO CHANGE WITHOUT NOTICE
MODULAR ENCLOSURE SYSTEMS472
6
PROLINE™ EXTERNAL COMPONENTS PROLINE™ tOPs aNd basEs
PROLINE™ tOPs aNd basEs
SOLID TOPS
Bulletin: P20, P20eM, P20S
Catalog Number Type Frame Type Fits Frame B x C W (mm) W (in.) D (mm) D (in.)
PT45 Steel Single-Bay 400 x 500 399 15.71 499 19.65
PT46 Steel Single-Bay 400 x 600 399 15.71 599 23.58
PT64 Steel Single-Bay 600 x 400 592 23.31 399 15.71
PT64HF2 EMC Single-Bay 600 x 400 592 23.31 399 15.71
PT65 Steel Single-Bay 600 x 500 592 23.31 499 19.65
PT66 Steel Single-Bay 600 x 600 592 23.31 599 23.58
PT66HF2 EMC Single-Bay 600 x 600 592 23.31 599 23.58
PT66SS Stainless Steel Single-Bay 600 x 600 592 23.31 599 23.58
PT68 Steel Single-Bay 600 x 800 592 23.31 799 31.46
PT68HF2 EMC Single-Bay 600 x 800 592 23.31 799 31.46
PT68SS Stainless Steel Single-Bay 600 x 800 592 23.31 799 31.46
PT76 Steel Single-Bay 700 x 600 692 27.24 599 23.58
PT76HF2 EMC Single-Bay 700 x 600 692 27.24 599 23.58
PT78 Steel Single-Bay 700 x 800 692 27.24 799 31.46
PT78HF2 EMC Single-Bay 700 x 800 692 27.24 799 31.46
PT79 Steel Single-Bay 700 x 900 692 27.24 899 35.39
PT79HF2 EMC Single-Bay 700 x 900 692 27.24 899 35.39
PT84 Steel Single-Bay 800 x 400 792 31.18 399 15.71
PT84HF2 EMC Single-Bay 800 x 400 792 31.18 399 15.71
PT85 Steel Single-Bay 800 x 500 792 31.18 499 19.65
PT85HF2 EMC Single-Bay 800 x 500 792 31.18 499 19.65
PT86 Steel Single-Bay 800 x 600 792 31.18 599 23.58
PT86HF2 EMC Single-Bay 800 x 600 792 31.18 599 23.58
PT86SS Stainless Steel Single-Bay 800 x 600 792 31.18 599 23.58
PT88 Steel Single-Bay 800 x 800 792 31.18 799 31.46
PT88HF2 EMC Single-Bay 800 x 800 792 31.18 799 31.46
PT88SS Stainless Steel Single-Bay 800 x 800 792 31.18 799 31.46
PT89 Steel Single-Bay 800 x 900 792 31.18 799 31.46
PT89HF2 EMC Single-Bay 800 x 900 792 31.18 799 31.46
PT105 Steel Single-Bay 1000 x 500 992 39.06 499 19.65
PT105HF2 EMC Single-Bay 1000 x 500 992 39.06 499 19.65
PT106 Steel Single-Bay 1000 x 600 992 39.06 599 23.58
PT106SS Stainless Steel Single-Bay 1000 x 600 992 39.06 599 23.58
PT106HF2 EMC Single-Bay 1000 x 600 992 39.06 599 23.58
PT108 Steel Single-Bay 1000 x 800 992 39.06 799 31.46
PT108HF2 EMC Single-Bay 1000 x 800 992 39.06 799 31.46
PT108SS Stainless Steel Single-Bay 1000 x 800 992 39.06 799 31.46
PT124 Steel Double-Bay 1200 x 400 1192 46.93 399 15.71
PT125 Steel Double-Bay 1200 x 500 1192 46.93 499 19.65
PT126 Steel Double-Bay 1200 x 600 1192 46.93 599 23.58
PT126SS Stainless Steel Double-Bay 1200 x 600 1192 46.93 599 23.58
PT128 Steel Double-Bay 1200 x 800 1192 46.93 799 31.46
PT128SS Stainless Steel Double-Bay 1200 x 800 1192 46.93 799 31.46
PT165 Steel Double-Bay 1600 x 500 1592 62.68 499 19.65
PT166 Steel Double-Bay 1600 x 600 1592 62.68 599 23.58
PT168 Steel Double-Bay 1600 x 800 1592 62.68 799 31.46

EQUIPMENT PROTECTION
MODULAR ENCLOSURE SYSTEMS 473
6
PROLINE™ EXTERNAL COMPONENTS PROLINE™ tOPs aNd basEs
VENTED TOP WITH INTEGRAL FAN TRAY
INDUSTRY STANDARDS
This component is rated UL Type 1. Installing this component on an
enclosure brings the enclosure rating to UL Type 1.
Bulletin: DPC, P20eM
Catalog Number Type Voltage
Fits Frame
Top B x C W (mm) W (in.) D (mm) D (in.)
PVT3F641 Steel 115 600 x 400 591 23.26 392 15.46
PVT3F651 Steel 115 600 x 500 592 23.31 493 19.40
PVT3F651EMC EMC 115 600 x 500 591 23.26 493 19.40
PVT3F661 Steel 115 600 x 600 591 23.26 593 23.33
PVT3F661EMC EMC 115 600 x 600 591 23.26 593 23.34
PVT3F681 Steel 115 600 x 800 591 23.26 793 31.12
PVT3F681EMC EMC 115 600 x 800 591 23.26 793 31.21
PVT3F761 Steel 115 700 x 600 691 27.20 593 23.34
PVT3F761EMC EMC 115 700 x 600 691 27.20 593 23.34
PVT3F781 Steel 115 700 x 800 691 27.20 793 31.21
PVT3F781EMC EMC 115 700 x 800 691 27.20 793 31.21
PVT3F791 Steel 115 700 x 900 691 27.20 893 35.15
PVT3F791EMC EMC 115 700 x 900 691 27.20 893 35.15
PVT3F841 Steel 115 800 x 400 791 31.13 393 15.46
PVT3F851 Steel 115 800 x 500 792 31.18 493 19.40
PVT3F851EMC EMC 115 800 x 500 791 31.13 493 19.40
PVT3F861 Steel 115 800 x 600 792 31.18 593 23.34
PVT3F861EMC EMC 115 800 x 600 791 31.13 593 23.34
PVT3F881 Steel 115 800 x 800 792 31.18 793 31.21
PVT3F881EMC EMC 115 800 x 800 791 31.13 793 31.21
PVT3F642 Steel 230 600 x 400 591 23.26 393 15.46
PVT3F652 Steel 230 600 x 500 591 23.26 493 19.40
PVT3F652EMC EMC 230 600 x 500 591 23.26 493 19.40
PVT3F662 Steel 230 600 x 600 591 23.26 593 23.34
PVT3F662EMC EMC 230 600 x 600 591 23.26 593 23.34
PVT3F682 Steel 230 600 x 800 591 23.26 793 31.21
PVT3F682EMC EMC 230 600 x 800 591 23.26 793 31.21
PVT3F762 Steel 230 700 x 600 691 27.20 593 23.34
PVT3F762EMC EMC 230 700 x 600 691 27.20 593 23.34
PVT3F782 Steel 230 700 x 800 691 27.20 793 31.21
PVT3F782EMC EMC 230 700 x 800 691 27.20 793 31.21
PVT3F792 Steel 230 700 x 900 691 27.20 893 35.15
PVT3F792EMC EMC 230 700 x 900 691 27.20 893 35.15
PVT3F842 Steel 230 800 x 400 791 31.13 393 15.46
PVT3F852 Steel 230 800 x 500 791 31.13 493 19.40
PVT3F852EMC EMC 230 800 x 500 791 31.13 493 19.40
PVT3F862 Steel 230 800 x 600 791 31.13 593 23.34
PVT3F862EMC EMC 230 800 x 600 791 31.13 593 23.34
PVT3F882 Steel 230 800 x 800 791 31.13 793 31.21
PVT3F882EMC EMC 230 800 x 800 791 31.13 793 31.21

EQUIPMENT PROTECTIONSUBJECT TO CHANGE WITHOUT NOTICE
MODULAR ENCLOSURE SYSTEMS474
6
PROLINE™ EXTERNAL COMPONENTS PROLINE™ tOPs aNd basEs
Additional Fans
Catalog Number Voltage Description
PVT3F1 115 3-fan kit
PVT3F2 230 3-fan kit
Number of Fans for Frame Depth
Frame Depth
Number of
Fans Provided
Maximum Number of
Fans Possible
400 3 3
500 3 6
600 3 6
800 3 9
900 3 9
Individual Fan Performance
Fan Performance 50 Hz 60 Hz
Airflow 0 in. static pressure 95 CFM (162 cu. m/hr) 113 CFM (192 cu. m/hr)
Maximum static pressure W.C. 0.29 in. (73 Pa) 0.35 in. (98 Pa)
Maximum ambient temp 158 F (70 C) 158 F (70 C)
Power consumption 15 W 14 W
PAGODA TOPS
Bulletin: P20
Catalog Number Gauge Frame Type
Fits Frame
Top B x C
W
mm/in.
D
mm/in.
PPT64 16 Single-Bay 600 x 400 592
23.30
399
15.70
PPT65 16 Single-Bay 600 x 500 592
23.30
499
19.64
PPT66 16 Single-Bay 600 x 600 592
23.30
599
23.57
PPT68 16 Single-Bay 600 x 800 592
23.30
799
31.45
PPT76 16 Single-Bay 700 x 600 692
27.24
599
23.57
PPT78 16 Single-Bay 700 x 800 692
27.24
799
31.45
PPT79 14 Single-Bay 700 x 900 692
27.24
899
35.39
PPT84 16 Single-Bay 800 x 400 592
23.30
399
15.70
PPT85 16 Single-Bay 800 x 500 792
31.17
499
19.64
PPT86 16 Single-Bay 800 x 600 792
31.17
599
23.57
PPT88 14 Single-Bay 800 x 800 792
31.17
799
31.45
PPT89 14 Single-Bay 800 x 900 792
31.17
899
35.39
PPT105 16 Single-Bay 1000 x 500 992
39.05
499
19.64
PPT106 16 Single-Bay 1000 x 600 992
39.05
599
23.57
PPT108 14 Single-Bay 1000 x 800 992
39.05
799
31.45
PPT125 16 Double-Bay 1200 x 500 1192
46.92
499
19.64
PPT126 16 Double-Bay 1200 x 600 1192
46.92
599
23.57
PPT128 14 Double-Bay 1200 x 800 1192
46.92
799
31.45
PPT165 16 Double-Bay 1600 x 500 1592
62.67
499
19.64
PPT166 16 Double-Bay 1600 x 600 1592
62.67
599
23.57
PPT168 14 Double-Bay 1600 x 800 1592
62.67
799
31.45

EQUIPMENT PROTECTION
MODULAR ENCLOSURE SYSTEMS 475
6
PROLINE™ EXTERNAL COMPONENTS PROLINE™ tOPs aNd basEs
PAGODA EXHAUST VENTS
Bulletin: DtHRM, P20
Catalog Number Description Volts
PPT1 Leadwires 115
PPT1C Power cord 115
PPT2 Leadwires 230
HIGHPERFORMANCE PAGODA EXHAUST VENT
Bulletin: DtHRM, P20, P20eM
Catalog Number Description Voltage Full Load Amps Use With
PPTHP1 Leadwires 115 1.7 Top with high-performance pagoda vent cutout
PPTHP1C Power cord 115 1.7 Top with high-performance pagoda vent cutout
PPTHP1EMC Power cord 115 1.7 Top with high-performance pagoda vent cutout on EMC enclosures
PPTHP2 Leadwires 230 .9 Top with high-performance pagoda vent cutout
PPTHP2EMC Power cord 230 .9 Top with high-performance pagoda vent cutout

EQUIPMENT PROTECTIONSUBJECT TO CHANGE WITHOUT NOTICE
MODULAR ENCLOSURE SYSTEMS476
6
PROLINE™ EXTERNAL COMPONENTS PROLINE™ tOPs aNd basEs
TOP WITH CUTOUT FOR HIGHPERFORMANCE PAGODA
EXHAUST VENT
Bulletin: P20, P20eM
Catalog Number Fits Frame Top B x C W (mm) W (in.) D (mm) D (in.)
PPTHP65 600 x 500 592 23.30 499 19.64
PPTHP65EMC 600 x 500 592 23.30 499 19.64
PPTHP66 600 x 600 592 23.30 599 23.57
PPTHP66EMC 600 x 600 592 23.30 599 23.57
PPTHP68 600 x 800 592 23.30 799 31.45
PPTHP76 700 x 600 692 27.24 599 23.57
PPTHP76EMC 700 x 600 692 27.24 599 23.57
PPTHP78EMC 700 x 800 692 27.24 799 31.45
PPTHP79 700 x 900 692 27.24 899 35.39
PPTHP79EMC 700 x 900 692 27.24 899 35.39
PPTHP85 800 x 500 792 31.17 499 19.64
PPTHP85EMC 800 x 500 792 31.17 499 19.64
PPTHP86 800 x 600 792 31.17 599 23.57
PPTHP86EMC 800 x 600 792 31.17 599 23.57
PPTHP88 800 x 800 792 31.17 799 31.45
PPTHP88EMC 800 x 800 792 31.17 799 31.45
PPTHP89EMC 800 x 900 792 31.17 899 35.39
PPTHP105 1000 x 500 992 39.05 499 19.64
PPTHP105EMC 1000 x 500 992 39.05 499 19.64
PPTHP106 1000 x 600 992 39.05 599 23.57
PPTHP106EMC 1000 x 600 992 39.05 599 23.57
PPTHP108 1000 x 800 992 39.05 799 31.45
PPTHP108EMC 1000 x 800 992 39.05 799 31.45
PPTHP125EMC 1200 x 500 1192 46.95 499 19.64
PPTHP126 1200 x 600 1192 46.92 599 23.57
PPTHP126EMC 1200 x 600 1192 46.92 599 23.57
PPTHP128 1200 x 800 1192 46.92 799 31.45
PPTHP128EMC 1200 x 800 1192 46.92 799 31.45
PPTHP165 1600 x 500 1192 62.67 499 19.64
PPTHP165EMC 1600 x 500 1592 62.67 499 19.64
PPTHP166 1600 x 600 1592 62.67 599 23.57
PPTHP166EMC 1600 x 600 1592 62.67 599 23.57
PPTHP168 1600 x 800 1592 62.67 799 31.45
PPTHP168EMC 1600 x 800 1592 62.67 799 31.45

EQUIPMENT PROTECTION
MODULAR ENCLOSURE SYSTEMS 477
6
PROLINE™ EXTERNAL COMPONENTS PROLINE™ tOPs aNd basEs
TOPMOUNT AIR CONDITIONER
Installing this air conditioner on an enclosure maintains the Type 12
rating.
1. Gasket kit and hardware for mounting to enclosure are
included.
2. Condensate overflow drain hose included.
Bulletin: MCl, PAC
Catalog Number
W x D
mm/in.
Fits
Frame
Top
B x C
X
mm/in.
FLA @
Max. Amb.
Temp.
115/60
FLA @
Max. Amb.
Temp.
115/50
FLA @
Max. Amb.
Temp.
230/60
FLA @
Max. Amb.
Temp.
230/50
BTU/Hr.
(W) @
Max. Amb.
Temp.
115/60
BTU/Hr.
(W) @
Max. Amb.
Temp.
115/50
BTU/Hr.
(W) @
Max. Amb.
Temp.
230/60
BTU/Hr.
(W) @
Max. Amb.
Temp.
230/50
Max.
Amb.
Temp. °F
Max.
Amb.
Temp. °C
Ship
Wt. (lb.)
Ship
Wt. (kg)
PAC226T64 592 x 400
23.31 x 15.75
600 x 400 315
12.38
— — 3.6 4.2 — — 2800 (819) 2500 (731) 125 52 125 57
PAC226T65 592 x 400
23.31 x 19.62
600 x 500 414
16.31
— — 3.6 4.2 — — 2800 (819) 2500 (731) 125 52 133 60
PAC216T66 592 x 600
23.31 x 23.62
600 x 600 514
20.25
6.8 6.8 — — 2200 (702) 2200 (644) — — 125 52 140 64
PAC226T66 592 x 600
23.31 x 23.62
600 x 600 514
20.25
— — 3.6 4.2 — — 2800 (819) 2500 (731) 125 52 140 64
PAC216T84 792 x 400
31.19 x 15.75
800 x 400 315
12.38
6.8 6.8 — — 2200 (702) 2200 (644) — — 125 52 140 64
PAC226T84 792 x 400
31.19 x 15.75
800 x 400 315
12.38
— — 3.6 4.2 — — 2800 (819) 2500 (731) 125 52 140 64
PAC216T85 792 x 499
31.19 x 19.62
800 x 500 414
16.31
6.8 6.8 — — 2200 (702) 2200 (644) — — 125 52 150 68
PAC226T86 792 x 600
31.19 x 23.62
800 x 600 514
20.25
— — 3.6 4.2 — — 2800 (819) 2500 (731) 125 52 160 73
PAC416T66 592 x 600
23.31 x 23.62
600 x 600 376
14.80
13.6 14.7 — — 2200 (1170) 3300 (965) — — 125 52 160 73
PAC426T66 592 x 600
23.31 x 23.62
600 x 600 376
14.80
— — 7.5 8.0 — — 4000 (1170) 3300 (965) 125 52 160 73
PAC416T68 592 x 800
23.31 x 31.50
600 x 800 476
18.74
13.6 14.7 — — 4000 (1170) 3300 (965) — — 125 52 180 82
PAC426T68 592 x 800
23.31 x 31.50
600 x 800 476
18.74
— — 7.5 8.0 — — 4000 (1170) 3300 (965) 125 52 180 82
PAC416T86 792 x 600
31.19 x 23.62
800 x 600 376
14.80
13.6 14.7 — — 4000 (1170) 3300 (965) — — 125 52 180 82
PAC426T86 792 x 600
31.19 x 23.62
800 x 600 376
14.80
— — 7.5 8.0 — — 4000 (1170) 3300 (965) 125 52 180 82
PAC416T88 792 x 800
31.19 x 31.50
800 x 800 476
18.74
13.6 14.7 — — 4000 (1170) 3300 (965) — — 125 52 200 91
PAC426T88 792 x 800
31.19 x 31.50
800 x 800 476
18.74
— — 7.5 8.0 — — 4000 (1170) 3300 (965) 125 52 200 91

EQUIPMENT PROTECTIONSUBJECT TO CHANGE WITHOUT NOTICE
MODULAR ENCLOSURE SYSTEMS478
6
PROLINE™ EXTERNAL COMPONENTS PROLINE™ tOPs aNd basEs
DOUBLEBAY AIR CONDITIONER TOP
Bulletin: PAC
Catalog Number Fits Frame Top B x C Gauge
W
mm/in.
D
mm/in.
Fits Top Mount
Air Conditioners
PTAC126 1200 x 600 16 1192
46.93
599
23.58
PAC216T66, PAC226T66, PAC416T66, PAC426T66
PTAC128 1200 x 800 14 1192
46.93
799
31.46
PAC416T68, PAC426T68
PTAC166 1600 x 600 16 1592
62.68
599
23.58
PAC216T86, PAC226T86, PAC416T86, PAC426T86
PTAC168 1600 x 800 14 1592
62.68
799
31.46
PAC416T88, PAC426T88
SUPPORT BRACKET KIT
Bulletin: P20
Catalog Number Fits Frame Size
PACB4 400-mm deep frames
PACB5 500-mm deep frames
PACB6 600-mm deep frames
PACB8 800-mm deep frames

EQUIPMENT PROTECTION
MODULAR ENCLOSURE SYSTEMS 479
6
PROLINE™ EXTERNAL COMPONENTS PROLINE™ tOPs aNd basEs
0MM SOLID BASE
Bulletin: P20, P20eM, P20S
Catalog Number Fits Frame B x C W (mm) W (in.) D (mm) D (in.)
PB045 400 x 500 353 13.90 453 17.83
PB046 400 x 600 353 13.90 592 23.31
PB064 600 x 400 592 23.31 353 13.90
PB064HF2 600 x 400 592 23.31 353 13.90
PB065HF2 600 x 500 592 23.31 453 17.83
PB066 600 x 600 592 23.31 553 21.77
PB066HF2 600 x 600 592 23.31 553 21.77
PB066SS 600 x 600 592 23.31 553 21.77
PB068 600 x 800 592 23.31 753 29.65
PB068HF2 600 x 800 592 23.31 753 29.65
PB068SS 600 x 800 592 23.31 753 29.65
PB076 700 x 600 692 27.24 553 21.77
PB076HF2 700 x 600 692 27.24 553 21.77
PB078 700 x 800 692 27.24 753 29.65
PB078HF2 700 x 800 692 27.24 753 29.65
PB079 700 x 900 692 27.24 853 33.58
PB079HF2 700 x 900 692 27.24 853 33.58
PB084 800 x 400 792 31.18 353 13.90
PB084HF2 800 x 400 792 31.18 353 13.90
PB085 800 x 500 792 31.18 453 17.83
PB085HF2 800 x 500 792 31.18 453 17.83
PB086 800 x 600 792 31.18 553 21.77
PB086HF2 800 x 600 792 31.18 553 21.77
PB086SS 800 x 600 792 31.18 553 21.77
PB088 800 x 800 792 31.18 753 29.65
PB088HF2 800 x 800 792 31.18 753 29.65
PB088SS 800 x 800 792 31.18 753 29.65
PB089HF2 800 x 900 792 31.18 853 33.58
PB0105 1000 x 500 992 39.06 453 17.83
PB0105HF2 1000 x 500 992 39.06 453 17.83
PB0106 1000 x 600 992 39.06 553 21.77
PB0106HF2 1000 x 600 992 39.06 553 21.77
PB0106SS 1000 x 600 992 39.06 553 21.77
PB0108 1000 x 800 992 39.06 753 29.65
PB0108SS 1000 x 800 992 39.06 753 29.65
PB0124 1200 x 400 1192 46.93 353 13.90
PB0125 1200 x 500 1192 46.93 453 17.83
PB0126 1200 x 600 1192 46.93 553 21.77
PB0126SS 1200 x 600 1192 46.93 553 21.77
PB0128 1200 x 800 1192 46.93 753 29.65
PB0165 1600 x 500 1592 62.68 453 17.83
PB0166 1600 x 600 1592 62.68 553 21.77
PB0168 1600 x 800 1592 62.68 753 29.65

EQUIPMENT PROTECTIONSUBJECT TO CHANGE WITHOUT NOTICE
MODULAR ENCLOSURE SYSTEMS480
6
PROLINE™ EXTERNAL COMPONENTS PROLINE™ tOPs aNd basEs
100MM SOLID BASE
Bulletin: P20, P20eM, P20S
Catalog Number Fits Frame B x C Gauge W (mm) W (in.) D (mm) D (in.)
PB145 400 x 500 16 353 13.90 453 17.83
PB146 400 x 600 16 353 13.90 592 23.31
PB164 600 x 400 16 599 23.58 359 14.13
PB164HF 600 x 400 16 599 23.58 359 14.13
PB165 600 x 500 16 599 23.58 459 18.07
PB165HF 600 x 500 16 599 23.58 459 18.07
PB166 600 x 600 16 599 23.58 559 22.01
PB166SS 600 x 600 16 599 23.58 559 22.01
PB168 600 x 800 16 599 23.58 759 29.88
PB168HF 600 x 800 16 599 23.58 759 29.88
PB168SS 600 x 800 16 599 23.58 759 29.88
PB176 700 x 600 16 699 27.52 559 22.01
PB176HF 700 x 600 16 699 27.52 559 22.01
PB178 700 x 800 16 699 27.52 759 29.88
PB179 700 x 900 14 699 27.52 859 33.82
PB179HF 700 x 900 14 699 27.52 859 33.82
PB184 800 x 400 16 799 31.46 359 14.13
PB184HF 800 x 400 16 799 31.46 359 14.13
PB185 800 x 500 16 799 31.46 459 18.07
PB185HF 800 x 500 16 799 31.46 459 18.07
PB186 800 x 600 16 799 31.46 559 22.01
PB186HF 800 x 600 16 799 31.46 559 22.01
PB188 800 x 800 14 799 31.46 759 29.88
PB189 800 x 900 14 799 31.46 859 33.82
PB189HF 800 x 900 14 799 31.46 859 33.82
PB1105 1000 x 500 16 999 39.33 459 18.07
PB1105HF 1000 x 500 16 999 39.33 459 18.07
PB1106 1000 x 600 16 999 39.33 559 22.01
PB1106HF 1000 x 600 16 999 39.33 559 22.01
PB1106SS 1000 x 600 16 999 39.33 559 22.01
PB1108 1000 x 800 14 999 39.33 759 29.88
PB1108HF 1000 x 800 14 999 39.33 759 29.88
PB1108SS 1000 x 800 14 999 39.33 759 29.88
PB1124 1200 x 400 16 1199 47.20 359 14.13
PB1125 1200 x 500 16 1199 47.20 459 18.07
PB1126 1200 x 600 16 1199 47.20 559 22.01
PB1126SS 1200 x 600 16 1199 47.20 559 22.01
PB1128 1200 x 800 14 1199 47.20 759 29.88
PB1128SS 1200 x 800 14 1199 47.20 759 29.88
PB1165 1600 x 500 16 1599 62.95 459 18.07
PB1166 1600 x 600 16 1599 62.95 559 22.01
PB1168 1600 x 800 14 1599 62.95 759 29.88
100MM SOLID BASE JOINING, SIDETOSIDE
Bulletin: P20, P20eM
Catalog Number Description
PJ2FB Solid Base Joining, 100-mm Solid Bases, side-to-side
PJ2FBHF2 EMC Solid Base Joining, 100-mm Solid Bases, side-to-side

EQUIPMENT PROTECTION
MODULAR ENCLOSURE SYSTEMS 481
6
PROLINE™ EXTERNAL COMPONENTS PROLINE™ tOPs aNd basEs
PROLINE™ FRAME FLOORMOUNTING BRACKET
Not for use on colocation frames, which include welded-in floor
mounting brackets.
Bulletin: DPY
Catalog Number Description
PFBK PROLINE Frame Floor-Mounting Bracket
CABLE ENTRY GLAND PLATE
Bulletin: P20
Catalog Number
PCEGP
FRAME FEET
Bulletin: P20
Catalog Number Description
PFFM12 Frame Feet
LEVELERS
Bulletin: P20
Catalog Number Description
PLM12 Post-type Levelers

EQUIPMENT PROTECTIONSUBJECT TO CHANGE WITHOUT NOTICE
MODULAR ENCLOSURE SYSTEMS482
6
PROLINE™ EXTERNAL COMPONENTS PROLINE™ tOPs aNd basEs
100MM PLINTH BASE
Order a gland plate system to provide Type 12 protection when using a
Plinth Base.
Bulletin: P20
Catalog Number Fits Frame B x C
W
mm/in.
D
mm/in.
PPB145 400 x 500 399
15.71
459
18.07
PPB146 400 x 600 399
15.71
559
22.01
PPB164 600 x 400 599
23.58
359
14.13
PPB165 600 x 500 599
23.58
459
18.07
PPB166 600 x 600 599
23.58
559
22.01
PPB168 600 x 800 599
23.58
759
29.88
PPB176 700 x 600 699
27.52
559
22.01
PPB178 700 x 800 699
27.52
759
29.88
PPB179 700 x 900 699
27.52
859
33.82
PPB184 800 x 400 799
31.46
359
14.13
PPB185 800 x 500 799
31.46
459
18.07
PPB186 800 x 600 799
31.46
559
22.01
PPB188 800 x 800 799
31.46
759
29.88
PPB189 800 x 900 799
31.46
859
33.82
PPB1105 1000 x 500 999
39.33
459
18.07
PPB1106 1000 x 600 999
39.33
559
22.01
PPB1108 1000 x 800 999
39.33
759
29.88
PPB1124 1200 x 400 1199
47.20
359
14.13
PPB1125 1200 x 500 1199
47.20
459
18.07
PPB1126 1200 x 600 1199
47.20
559
22.01
PPB1128 1200 x 800 1199
47.20
759
29.88
PPB1165 1600 x 500 1599
62.95
459
18.07
PPB1166 1600 x 600 1599
62.95
559
22.01
PPB1168 1600 x 800 1599
62.95
759
29.88

EQUIPMENT PROTECTION
MODULAR ENCLOSURE SYSTEMS 483
6
PROLINE™ EXTERNAL COMPONENTS PROLINE™ tOPs aNd basEs
200MM PLINTH BASE
Order a gland plate system to provide Type 12 protection when using a
plinth base.
Bulletin: P20
Catalog Number Fits Frame B x C
W
mm/in.
D
mm/in.
PPB245 400 x 500 399
15.71
459
18.07
PPB266 600 x 600 599
23.58
559
22.01
PPB268 600 x 800 599
23.58
759
29.88
PPB276 700 x 600 699
27.52
559
22.01
PPB279 700 x 900 699
27.52
859
33.82
PPB284 800 x 400 799
31.46
359
14.13
PPB285 800 x 500 799
31.46
459
18.07
PPB286 800 x 600 799
31.46
559
22.01
PPB288 800 x 800 799
31.46
759
29.88
PPB289 800 x 900 799
31.46
859
33.82
PPB2105 1000 x 500 999
39.33
459
18.07
PPB2106 1000 x 600 999
39.33
559
22.01
PPB2108 1000 x 800 999
39.33
759
29.88
PPB2124 1200 x 400 1199
47.20
359
14.13
PPB2125 1200 x 500 1199
47.20
459
18.07
PPB2126 1200 x 600 1199
47.20
559
22.01
PPB2128 1200 x 800 1199
47.20
759
29.88
PPB2165 1600 x 500 1599
62.95
459
18.07
PPB2166 1600 x 600 1599
62.95
559
22.01
PPB2168 1600 x 800 1599
62.95
759
29.88

EQUIPMENT PROTECTIONSUBJECT TO CHANGE WITHOUT NOTICE
MODULAR ENCLOSURE SYSTEMS484
6
PROLINE™ EXTERNAL COMPONENTS PROLINE™ tOPs aNd basEs
VENTED PLINTH BASE COVERS
A standard plinth base must be ordered in combination with Vented
Plinth Base covers to form a Vented Plinth Base. If using a gland plate
with the Vented Plinth Base, order a vented gland plate to provide air
circulation through the bottom of the enclosure.
Bulletin: P20
100-mm Vented Plinth Base Covers
Catalog Number Fits Frame Type Fits Frame (B dimension)
W
mm/in.
PPBCV1600 Single-Bay 600 599
23.58
PPBCV1700 Single-Bay 700 699
27.52
PPBCV1800 Single-Bay 800 799
31.46
PPBCV11000 Single-Bay 1000 999
39.33
PPBCV11200 Double-Bay 1200 1199
47.20
PPBCV11600 Double-Bay 1600 1599
62.95
200-mm Vented Plinth Base Covers
Catalog Number Fits Frame Type Fits Frame (B dimension)
W
mm/in.
PPBCV2600 Single-Bay 600 599
23.58
PPBCV2700 Single-Bay 700 699
27.52
PPBCV2800 Single-Bay 800 799
31.46
PPBCV21000 Single-Bay 1000 999
39.33
PPBCV21600 Double-Bay 1600 1599
62.95
PLINTH BASE STACKING KIT
Bulletin: P20
Catalog Number Description
PPBSK Plinth Base Stacking Kit
REPLACEMENT FILTER KIT FOR FILTERED GLAND
PLATE
Bulletin: P20
Catalog Number
Filter Size
mm/in. Fits Frame B x C
PFK4012 406 x 127
16.00 x 5.00
600 x 400
PFK6020 609 x 203
24.00 x 8.00
800 x 500, 800 x 600, 800 x 800, 800 x 900,
1600 x 500, 1600 x 600, 1600 x 800
PFK8120 813 x 203
32.00 x 8.00
1000 x 500, 1000 x 600, 1000 x 800

EQUIPMENT PROTECTION
MODULAR ENCLOSURE SYSTEMS 485
6
PROLINE™ EXTERNAL COMPONENTS PROLINE™ tOPs aNd basEs
GLAND PLATES
Solid Gland Plate and EMC Gland Plate are accessories to 100-mm Solid
Base, 100-mm/200-mm Plinth Base, Mobile Base and Transportation
Base. These gland plates can be used without a base if casters, levelers
or frame feet are installed. EMC Gland Plate maintains a Type 1 rating.
Solid Gland Plate
Filtered (Vented) Gland Plate
EMC Gland Plate
Bulletin: P20
Gland Plates for Single-Bay Frames
Catalog Number Type Fits Frame Size, Width Fits Frame Size, Depth
PGP64 Solid 600 400
PGP64AHF EMC 600 400
PGPV64 Filtered 600 400
PGP65 Solid 600 500
PGP65AHF EMC 600 500
PGPV65 Filtered 600 500
PGP66 Solid 600 600
PGP66AHF EMC 600 600
PGPV66 Filtered 600 600
PGP68 Solid 600 800
PGP68AHF EMC 600 800
PGPV68 Filtered 600 800
PGPV76 Filtered 700 600
PGP78 Solid 700 800
PGP78AHF EMC 700 800
PGPV78 Filtered 700 800
PGP79 Solid 700 900
PGP79AHF EMC 700 900
PGPV79 Filtered 700 900
PGP84 Solid 800 400
PGP84AHF EMC 800 400
PGP85 Solid 800 500
PGP85AHF EMC 800 500
PGPV85 Filtered 800 500
PGP86 Solid 800 600
PGP86AHF EMC 800 600
PGPV86 Filtered 800 600
PGP88 Solid 800 800
PGP88AHF EMC 800 800
PGPV88 Filtered 800 800
PGP89 Solid 800 900
PGP89AHF EMC 800 900
PGPV89 Filtered 800 900
PGP105 Solid 1000 500
PGP105AHF EMC 1000 500
PGPV105 Filtered 1000 500
PGP106 Solid 1000 600
PGP106AHF EMC 1000 600
PGPV106 Filtered 1000 600
PGP108 Solid 1000 800
PGP108AHF EMC 1000 800
PGPV108 Filtered 1000 800

EQUIPMENT PROTECTIONSUBJECT TO CHANGE WITHOUT NOTICE
MODULAR ENCLOSURE SYSTEMS486
6
PROLINE™ EXTERNAL COMPONENTS PROLINE™ tOPs aNd basEs
Gland Plates for Double-Bay Frames
Catalog Number Type Fits Frame Size, Width Fits Frame Size, Depth
PGP124 Solid 1200 400
PGP125 Solid 1200 500
PGPV125 Filtered 1200 500
PGP126 Solid 1200 600
PGPV126 Filtered 1200 600
PGP128 Solid 1200 800
PGPV128 Filtered 1200 800
PGP165 Solid 1600 500
PGPV165 Filtered 1600 500
PGP166 Solid 1600 600
PGPV166 Filtered 1600 600
PGP168 Solid 1600 800
PGPV168 Filtered 1600 800
PGP185 Solid 1800 500
PGP186 Solid 1800 600
MOBILE BASE
Four non-locking casters provide a maximum load-bearing
capacity of 1000 lb. (453.6 kg).
Never use casters while transporting a cabinet by truck on
roadways.
Bulletin: P20
Catalog Number AxB in. AxB mm Fits Frame B x C (mm)
PMB66 40.91 x 23.62 1039 x 600 600 x 500 and 600 x 600
PMB69 52.72 x 23.62 1339 x 600 600 x 800 and 600 x 900
Catalog Number AxB in. AxB mm Fits Frame B x C (mm)
PMB86 40.91 x 31.50 1039 x 800 800 x 500 and 800 x 600
PMB89 52.72 x 31.50 1339 x 800 800 x 800 and 800 x 900
MOBILE BASE LEVELING KIT
Bulletin: P20
Catalog Number Description Use with
PMBLM12 Mobile Base Leveling Kit Mobile Base

EQUIPMENT PROTECTION
MODULAR ENCLOSURE SYSTEMS 487
6
PROLINE™ EXTERNAL COMPONENTS PROLINE™ tOPs aNd basEs
PROLINE™ TRANSPORTATION BASE
®
ROL-A-LIFT is a trademark of Skarnes Inc.
Bulletin: P20
Catalog Number AxBxC in. AxBxC mm
PTB166 6.57 x 23.62 x 23.62 167 x 600 x 600
PTB168 6.57 x 23.62 x 31.50 167 x 600 x 800
PTB176 0.00
PTB178 0.00
PTB186 6.57 x 31.50 x 23.62 167 x 800 x 600
PTB188 0.00
PTB1106 6.57 x 39.37 x 23.62 167 x 1000 x 600
PTB1108 0.00
PTB1126 6.57 x 47.24 x 23.62 167 x 1200 x 600
TRANSPORTATION BASE JOINING, SIDETOSIDE
Bulletin: P20
Catalog Number Description
PTJT Transportation Base Joining, Side-to-Side

EQUIPMENT PROTECTIONSUBJECT TO CHANGE WITHOUT NOTICE
MODULAR ENCLOSURE SYSTEMS488
6
PROLINE™ EXTERNAL COMPONENTS PROLINE™ tOPs aNd basEs
CASTER KIT
(Do not use on
plinth bases.)
Casters Maximum Load: 1000 lb.
(453 kg)
Never use casters while
transporting a cabinet by truck on
roadways.
Bulletin: P20
Catalog Number Description
PC1M12 Set of 4 Casters

EQUIPMENT PROTECTIONSUBJECT TO CHANGE WITHOUT NOTICE
MODULAR ENCLOSURE SYSTEMS490
6
PROLINE™ INTERNAL COMPONENTS PROLINE™ INtERNaL cOMPONENts FOR MOduLaR ENcLOsuREs
PROLINE™ INtERNaL cOMPONENts
PROLINE™ INtERNaL cOMPONENts FOR MOduLaR ENcLOsuREs
PROLINE™ INTERNAL COMPONENTS PRODUCT OVERVIEW
PROLINE™ Mounting Flexibility
Panel Mounting
Rack Mounting
Grid System Mounting

EQUIPMENT PROTECTIONSUBJECT TO CHANGE WITHOUT NOTICE
MODULAR ENCLOSURE SYSTEMS492
6
PROLINE™ INTERNAL COMPONENTS PROLINE™ INtERNaL cOMPONENts FOR MOduLaR ENcLOsuREs
SELECTION MATRIX: PANEL AND GRID MOUNTING
PROLINE™ INTERNAL COMPONENTS proline™ internal components for modular enclosures
Spec-00426 F
EQUIPMENT PROTECTION SOLUTIONSSUBJECT TO CHANGE WITHOUT NOTICEMODULAR ENCLOSURE SYSTEMS:1
763.422.2211
763.422.2600
Spec-00426
F
MODULAR ENCLOSURE SYSTEMS:
proline™ inter nal compon ents
proline™ inter nal compon ents for modu lar enclos ures
SELECTION MATRIX: PANEL AND GRID MOUNTING
Single-Bay
PROLINE Frame
Full
Subpanela
Swing-
Out
PanelfCenter
UprightbTransformer
Railse
Grid StrapcGrid Strapd
Full
Height
Vertical
Grid
Strap Lutze®
Adapter Frame
ShelfA B C One
Row Three
Row One Row Three
Row
700 600 600 PF76 PSF76 PTR6 PGH1S6 PGH3S6 PGH1S7 PGH3S7 PGH3S7V PGLS6 PFSH66
700 800 600 PF78 PSF78 PCU7 PTR8 PGH1S6 PGH3S6 PGH1S9 PGH3S9 PGH3S7V PGLS6 PFSH86
1400 600 600 PPF146 PSP146 PTR6 PGH1S6 PGH3S6 PGH1S7 PGH3S7 PGH3S14V PGLS6 PFSH66
1400 600 800 PPF146 PSP146 PTR6 PGH1S8 PGH3S8 PGH1S7 PGH3S7 PGH3S14V PGLS8 PFSH68
1400 800 500 PPF148 PSP148 PCU14 PTR8 PGH1S5 PGH3S5 PGH1S9 PGH3S9 PGH3S14V PGLS5 PFSH85
1400 800 800 PPF148 PSP148 PCU14 PTR8 PGH1S8 PGH3S8 PGH1S9 PGH3S9 PGH3S14V PGLS8 PFSH88
1600 600 400 PPF166 PSP166 PTR6 PGH1S4 PGH3S4 PGH1S7 PGH3S7 PGH3S16V PGLS4 PFSH64
1600 600 600 PPF166 PSP166 PTR6 PGH1S6 PGH3S6 PGH1S7 PGH3S7 PGH3S16V PGLS6 PFSH66
1600 600 800 PPF166 PSP166 PTR6 PGH1S8 PGH3S8 PGH1S7 PGH3S7 PGH3S16V PGLS8 PFSH68
1600 800 600 PPF168 PSP168 PCU16 PTR8 PGH1S6 PGH3S6 PGH1S9 PGH3S9 PGH3S16V PGLS6 PFSH86
1600 800 800 PPF168 PSP168 PCU16 PTR8 PGH1S8 PGH3S8 PGH1S9 PGH3S9 PGH3S16V PGLS8 PFSH88
1800 600 400 PPF186 PSP186 PTR6 PGH1S4 PGH3S4 PGH1S7 PGH3S7 PGH3S18V PGLS4 PFSH64
1800 600 500 PPF186 PSP186 PTR6 PGH1S5 PGH3S5 PGH1S7 PGH3S7 PGH3S18V PGLS5 PFSH65
1800 600 600 PPF186 PSP186 PTR6 PGH1S6 PGH3S6 PGH1S7 PGH3S7 PGH3S18V PGLS6 PFSH66
1800 600 800 PPF186 PSP186 PTR6 PGH1S8 PGH3S8 PGH1S7 PGH3S7 PGH3S18V PGLS8 PFSH68
1800 800 400 PPF188 PSP188 PCU18 PTR8 PGH1S4 PGH3S4 PGH1S9 PGH3S9 PGH3S18V PGLS4 PFSH84
1800 800 500 PPF188 PSP188 PCU18 PTR8 PGH1S5 PGH3S5 PGH1S9 PGH3S9 PGH3S18V PGLS5 PFSH85
1800 800 600 PPF188 PSP188 PCU18 PTR8 PGH1S6 PGH3S6 PGH1S9 PGH3S9 PGH3S18V PGLS6 PFSH86
1800 800 800 PPF188 PSP188 PCU18 PTR8 PGH1S8 PGH3S8 PGH1S9 PGH3S9 PGH3S18V PGLS8 PFSH88
1800 1000 500 PPF1810 PCU18 PGH1S5 PGH3S5 PGH1S11 PGH3S11 PGH3S18V PGLS5 PFSH105
1800 1000 600 PPF1810 PCU18 PGH1S6 PGH3S6 PGH1S11 PGH3S11 PGH3S18V PGLS6 PFSH106
1800 1000 800 PPF1810 PCU18 PGH1S8 PGH3S8 PGH1S11 PGH3S11 PGH3S18V PGLS8 PFSH108
2000 400 500 PPF204 PTR8 PGH1S5 PGH3S5 PGH3S20V PGLS5
2000 400 600 PPF204 PTR8 PGH1S6 PGH3S6 PGH3S20V PGLS6
2000 600 400 PPF206 PSP206 PTR6 PGH1S4 PGH3S4 PGH1S7 PGH3S7 PGH3S20V PGLS4 PFSH64
2000 600 500 PPF206 PSP206 PTR6 PGH1S5 PGH3S5 PGH1S7 PGH3S7 PGH3S20V PGLS5 PFSH65
2000 600 600 PPF206 PSP206 PTR6
PGH1S6
PGH3S6 PGH1S7 PGH3S7 PGH3S20V PGLS6 PFSH66
2000 600 800 PPF206 PSP206 PTR6 PGH1S8 PGH3S8 PGH1S7 PGH3S7 PGH3S20V PGLS8 PFSH68
2000 700 600 PPF207 PSP207
PGH1S6
PGH3S6 PGH1S8 PGH3S8 PGH3S20V PGLS6 PFSH76
2000 700 800 PPF207 PSP207 PGH1S8 PGH3S8 PGH1S8 PGH3S8 PGH3S20V PGLS8 PFSH78
2000 800 400 PPF208 PSP207 PCU20 PTR8 PGH1S4 PGH3S4 PGH1S9 PGH3S9 PGH3S20V PGLS4 PFSH84
2000 800 500 PPF208 PSP208 PCU20 PTR8 PGH1S5 PGH3S5 PGH1S9 PGH3S9 PGH3S20V PGLS5 PFSH85
2000 800 600 PPF208 PSP208 PCU20 PTR8 PGH1S6 PGH3S6 PGH1S9 PGH3S9 PGH3S20V PGLS6 PFSH86
2000 800 800 PPF208 PSP208 PCU20 PTR8 PGH1S8 PGH3S8 PGH1S9 PGH3S9 PGH3S20V PGLS8 PFSH88
2000 800 900 PPF208 PSP208 PCU20 PTR8 PGH1S9 PGH3S9 PGH1S9 PGH3S9 PGH3S20V PFSH89
2000 1000 500 PPF2010 PCU20 PGH1S5 PGH3S5 PGH1S11 PGH3S11 PGH3S20V PGLS5 PFSH105
2000 1000 600 PPF2010 PCU20 PGH1S6 PGH3S6 PGH1S11 PGH3S11 PGH3S20V PGLS6 PFSH106
2000 1000 800 PPF2010 PCU20 PGH1S8 PGH3S6 PGH1S11 PGH3S11 PGH3S20V PGLS8 PFSH108
2200 600 600 PPF226 PSP226 PTR6 PGH1S6 PGH3S6 PGH1S7 PGH3S7 PGH3S22V PGLS6 PFSH66
2200 600 800 PPF226 PSP226 PTR6 PGH1S8 PGH3S8 PGH1S7 PGH3S7 PGH3S22V PGLS8 PFSH68
2200 700 800 PPF227 PSP227 PGH1S8 PGH3S8 PGH1S8 PGH3S8 PGH3S22V PGLS8 PFSH78
2200 700 900 PPF227 PSP227 PGH1S9 PGH3S9 PGH1S8 PGH3S8 PGH3S22V PFSH79
2200 800 600 PPF228 PSP228 PCU22 PTR8 PGH1S6 PGH3S6 PGH1S9 PGH3S9 PGH3S22V PGLS6 PFSH86
2200 800 800 PPF228 PSP228 PCU22 PTR8 PGH1S8 PGH3S8 PGH1S9 PGH3S9 PGH3S22V PGLS8 PFSH88
2200 1000 500 PPF2210 PCU22 PGH1S5 PGH3S5 PGH1S11 PGH3S11 PGH3S22V PGLS5 PFSH105
2200 1000 600 PPF2210 PCU22 PGH1S6 PGH3S6 PGH1S11 PGH3S11 PGH3S22V PGLS6 PFSH106
Steel Sides, Covers and Door Options

EQUIPMENT PROTECTION
MODULAR ENCLOSURE SYSTEMS 493
6
PROLINE™ INTERNAL COMPONENTS PROLINE™ INtERNaL cOMPONENts FOR MOduLaR ENcLOsuREs
PROLINE™ INTERNAL COMPONENTS PROLINE™ INTERNAL COMPONENTS FOR MODULAR ENCLOSURES
Spec-00426 F PH 763.422.2211 • FA X 763.422.2600 • PENTAIRPROTECT.COMEQUIPMENT PROTECTION SOLUTIONS MODULAR ENCLOSURE SYSTEMS: 2
Double-Bay
PROLINE Frame
Full
Subpanela
Swing-
Out
PanelfCenter
UprightbTransformer
Railse
Grid StrapcGrid StrapdFull
Height
Vertical
Grid
Strap Lutze®
Adapter Frame
ShelfA B C One
Row Three
Row One
Row Three
Row
700 1200 600 PPF712 PSP76 PCU7 PTR6 or
PTR12
PGH1S6 PGH3S6 PGH1S13 PGH3S13 PGH3S7V PGLS6 PFSH66
1600 1200 600 PPF1612 PSP166 PCU16 PTR6 or
PTR12
PGH1S6 PGH3S6 PGH1S13 PGH3S13 PGH3S16V PGLS6 PFSH66
1600 1200 800 PPF1612 PSP166 PCU16 PTR6 or
PTR12
PGH1S8 PGH3S8 PGH1S13 PGH3S13 PGH3S16V PGLS8 PFSH68
1800 1200 400 PPF1812 PSP186 PCU18 PTR6 or
PTR12
PGH1S4 PGH3S4 PGH1S13 PGH3S13 PGH3S18V PGLS4 PFSH64
1800 1200 500 PPF1812 PSP186 PCU18 PTR6 or
PTR12
PGH1S5 PGH3S5 PGH1S13 PGH3S13 PGH3S18V PGLS5 PFSH65
1800 1200 600 PPF1812 PSP186 PCU18 PTR6 or
PTR12
PGH1S6 PGH3S6 PGH1S13 PGH3S13 PGH3S18V PGLS6 PFSH66
1800 1200 800 PPF1812 PSP186 PCU18 PTR6 or
PTR12
PGH1S8 PGH3S8 PGH1S13 PGH3S13 PGH3S18V PGLS8 PFSH68
1800 1600 500 PPF1816 PSP188 PCU18 PTR8 PGH1S5 PGH3S5 PGH1S17 PGH3S17 PGH3S18V PGLS5 PFSH85
1800 1600 600 PPF1816 PSP188 PCU18 PTR8 PGH1S6 PGH3S6 PGH1S17 PGH3S17 PGH3S18V PGLS6 PFSH86
1800 1600 800 PPF1816 PSP188 PCU18 PTR8 PGH1S8 PGH3S8 PGH1S17 PGH3S17 PGH3S18V PGLS8 PFSH88
2000 1200 500 PPF2012 PSP206 PCU20 PTR6 or
PTR12
PGH1S5 PGH3S5 PGH1S13 PGH3S13 PGH3S20V PGLS5 PFSH65
2000 1200 600 PPF2012 PSP206 PCU20 PTR6 or
PTR12
PGH1S6 PGH3S6 PGH1S13 PGH3S13 PGH3S20V PGLS6 PFSH66
2000 1200 800 PPF2012 PSP206 PCU20 PTR6 or
PTR12
PGH1S8 PGH3S8 PGH1S13 PGH3S13 PGH3S20V PGLS8 PFSH68
2000 1600 500 PPF2016 PSP208 PCU20 PTR8 PGH1S5 PGH3S5 PGH1S17 PGH3S17 PGH3S20V PGLS5 PFSH85
2000 1600 600 PPF2016 PSP208 PCU20 PTR8 PGH1S6 PGH3S6 PGH1S17 PGH3S17 PGH3S20V PGLS6 PFSH86
2000 1600 800 PPF2016 PSP208 PCU20 PTR8 PGH1S8 PGH3S8 PGH1S17 PGH3S17 PGH3S20V PGLS8 PFSH88
2200 1200 500 PPF2212 PSP226 PCU22 PTR6 or
PTR12
PGH1S5 PGH3S5 PGH1S13 PGH3S13 PGH3S22V PGLS5 PFSH65
2200 1200 600 PPF2212 PSP226 PCU22 PTR6 or
PTR12
PGH1S6 PGH3S6 PGH1S13 PGH3S13 PGH3S22V PGLS6 PFSH66
2200 1200 800 PPF2212 PSP226 PCU22 PTR6 or
PTR12
PGH1S8 PGH3S8 PGH1S13 PGH3S13 PGH3S22V PGLS8 PFSH68
a Mount to top and bottom of frame. Glide blocks position subpanel on frame bottom. Maximum size subpanel shown in chart.
b Center uprights are used in 800-mm wide, 1200-mm wide and 1600-mm wide frames to allow mounting of accessories for 600-mm frames.
These accessories include partial panels, swing-out panels, rack angles, rack angle accessories, and grid system components.
c Grid system straps fit horizontally from front to back on frame top and bottom openings.
d Grid straps and transformer rails fit horizontally from right to left between grid straps or holes in frame.
e Use clamping nut package catalog number APS1420CN (1/4 - 20) or catalog number APS1618CN (5/16 - 18) for additional mounting options.
f Requires center upright to install.

EQUIPMENT PROTECTIONSUBJECT TO CHANGE WITHOUT NOTICE
MODULAR ENCLOSURE SYSTEMS494
6
PROLINE™ INTERNAL COMPONENTS PROLINE™ INtERNaL cOMPONENts FOR MOduLaR ENcLOsuREs
SELECTION MATRIX: RACK MOUNTING
PROLINE™ INTERNAL COMPONENTS PROLINE™ INTERNAL COMPONENTS FOR MODULAR ENCLOSURES
Spec-00427 F
EQUIPMENT PROTECTION SOLUTIONSSUBJECT TO CHANGE WITHOUT NOTICEMODULAR ENCLOSURE SYSTEMS1
763.422.2211
763.422.2600
Spec-00427
F
MODULAR ENCLOSURE SYSTEMS
proline™ inter nal compon ents
proline™ inter nal compon ents for modu lar enclos ures
SELECTION MATRIX: RACK MOUNTING
Steel Sides, Covers and Door Options
Single-Bay
Frames
19-in. Full Height
Rack Angles
a
24-in. Full Height
Rack Angles
b
Frame Reducing Brackets Frame Accessory
Brackets
b
Rack
Angles
AvailableH W Square
Hole Tapped Square
Hole Tapped 19-in.
Centered 19-in.
Justified 24-in.
Centered 24-in.
Justified 19-in. 24-in.
700 600 PRA197TH PRA197TP PFB19 19-in.
700 800 PRA197TH PRA197TP PRA247TH PRA247TP PRB100 PRB200 PRB50 PRB100 PFB19 PFB24 19-in., 24-in.
1400 600 PRA1914TH PRA1914TP PFB19 19-in.
1400 800 PRA1914TH PRA1914TP PRA2414TH PRA2414TP PRB100 PRB200 PRB50 PRB100 PFB19 PFB24 19-in., 24-in.
1600 600 PRA1916TH PRA1916TP PFB19 19-in.
1600 700 PRA1916TH PRA1916TP PRA2416TH PRA2416TP PRB50 PRB100 PFB19 PFB24 19-in., 24-in.
1600 800 PRA1916TH PRA1916TP PRA2416TH PRA2416TP PRB100 PRB200 PRB50 PRB100 PFB19 PFB24 19-in., 24-in.
1800 600 PRA1918TH PRA1918TP PFB19 19-in.
1800 700 PRA1918TH PRA1918TP PRA2418TH PRA2418TP PRB50 PRB100 PFB19 PFB24 19-in., 24-in.
1800 800 PRA1918TH PRA1918TP PRA2418TH PRA2418TP PRB100 PRB200 PRB50 PRB100 PFB19 PFB24 19-in., 24-in.
1800 1000 PRA1918TH PRA1918TP PRA2418TH PRA2418TP PRB200 PRB100 &
PRB50
PFB19 PFB24 19-in., 24-in.
2000 600 PRA1920TH PRA1920TP PFB19 19-in.
2000 700 PRA1920TH PRA1920TP PRA2420TH PRA2420TP PRB50 PRB100 PFB19 PFB24 19-in., 24-in.
2000 800 PRA1920TH PRA1920TP PRA2420TH PRA2420TP PRB100 PRB200 PRB50 PRB100 PFB19 PFB24 19-in., 24-in.
2000 1000 PRA1920TH PRA1920TP PRA2420TH PRA2420TP PRB200 PRB100 &
PRB50
PFB19 PFB24 19-in., 24-in.
2200 600 PRA1922TH PRA1922TP PFB19 19-in.
2200 700 PRA1922TH PRA1922TP PRA2422TH PRA2422TP PRB50 PRB100 PFB19 PFB24 19-in., 24-in.
2200 800 PRA1922TH PRA1922TP PRA2422TH PRA2422TP PRB100 PRB200 PRB50 PRB100 PFB19 PFB24 19-in., 24-in.
2200 1000 PRA1922TH PRA1922TP PRA2422TH PRA2422TP PRB200 PRB100 &
PRB50
PFB19 PFB24 19-in., 24-in.
Double-Bay
Frames
19-in. Full Height
Rack Angles
a
24-in. Full Height
Rack Angles
b
Frame Reducing Brackets Frame Accessory
Brackets
b
Rack
Angles
AvailableH W Square
Hole Tapped Square
Hole Tapped 19-in.
Centered 19-in.
Justified 24-in.
Centered 24-in.
Justified 19-in. 24-in.
700 1200 PRA197TH PRA197TP PPB19 19-in.
1400 1200 PRA1914TH PRA1914TP PFB19 19-in.
1600 1200 PRA1916TH PRA1916TP PFB19 19-in.
1800 1200 PRA1918TH PRA1918TP PFB19 19-in.
1800 1600 PRA1918TH PRA1918TP PRA2418TH PRA2418TP PRB100 PRB200 PRB50 PRB100 PFB19 PFB24 19-in., 24-in.
2000 1200 PRA1920TH PRA1920TP PFB19 19-in.
2000 1600 PRA1920TH PRA1920TP PRA2420TH PRA2420TP PRB100 PRB200 PRB50 PRB100 PFB19 PFB24 19-in., 24-in.
2200 1200 PRA1922TH PRA1922TP PFB19 19-in.
a 19-in. rack angles have 23-in. spacing if used in a 700-mm wide frame.
b 24-in. rack angles and frame accessory brackets are designed for 700mm wide enclosures. They can be used in 800-mm and 1000-mm wide enclosures only if frame reducing brackets also are ordered.

EQUIPMENT PROTECTION
MODULAR ENCLOSURE SYSTEMS 495
6
PROLINE™ INTERNAL COMPONENTS PROLINE™ INtERNaL cOMPONENts FOR MOduLaR ENcLOsuREs
PROLINE™ INTERNAL COMPONENTS proline™ internal components for modular enclosures
Spec-00427 F PH 763.422.2211 • FA X 763.422.2600 • PENTAIRPROTECT.COMEQUIPMENT PROTECTION SOLUTIONS MODULAR ENCLOSURE SYSTEMS 2
Rack Accessories, 19-in.
Accessory
Fits
Frame
Depth
(mm) Fits
Accessory
Rack
Units
Req’d
Drawer
P19DR1US 600-900 1U
P19DR2US 600-900 2U
P19DR3US 600-900 3U
Writing Surface
P19WS Drawer
Pull-Out Shelf
P19PSH4 400-900 2U
P19PSH5 500-900 2U
P19PSH6 600-900 2U
P19PSH8 800-900 2U
P19PSH9 900 2U
Pull-Out Shelf Lock
PSHLOCK Pull-Out
Shelf
Screw Package
AS1032 Rack Angles
ASM5 Rack Angles
Cage Nut Package
P1032CN Rack Angles
PM5CN Rack Angles
Fixed Shelf
P19SH4 400-900 1U
P19SH5 500-900 1U
P19SH6 600-900 1U
P19SH8 800-900 1U
P19SH9 900 1U
Guides
PG4 400 1U
PG5 500 1U
PG6 600 1U
PG7 700 1U
PG8 800 1U
PG9 900 1U
Slides
A16SL2U 600-900 3U
Rack Accessories, 19-in.
Accessory Fits Accessory
Rack
Units
Req’d
Rack Panels Aluminum
P19RP1UA 1U
P19RP2UA 2U
P19RP3UA 3U
P19RP4UA 4U
P19RP5UA 5U
P19RP6UA 6U
P19RP7UA 7U
P19RP8UA 8U
P19RP9UA 9U
P19RP10UA 10U
P19RP11UA 11U
P19RP12UA 12U
P19RP16A 16U
Rack Panels, Painted Steel
P19RP1UP 1U
P19RP2UP 2U
P19RP3UP 3U
P19RP4UP 4U
P19RP5UP 5U
P19RP6UP 6U
P19RP7UP 7U
P19RP8UP 8U
P19RP9UP 9U
P19RP10UP 10U
P19RP11UP 11U
P19RP12UP 12U
P19RP16UP 16U
Filler Panel
PFP19RA Rack Angles
Keyboard Compartment
A19KBC2 2U
Fan Tray
A19FT3 1U
A19FT6 1U
Rack Accessories, 24-in.
Accessory
Fits
Frame
Depth
(mm) Fits
Accessory
Rack
Units
Req’d
Pull-Out Shelf
P24PSH4 400-900 2U
P24PSH5 500-900 2U
P24PSH6 600-900 2U
P24PSH8 800-900 2U
P24PSH9 900 2U
Pull-Out Shelf Lock
PSHLOCK Pull-Out
Shelf
Screw Package
AS1032 Rack Angles
ASM5 Rack Angles
Cage Nut Package
P1032CN Rack Angles
PM5CN Rack Angles
Fixed Shelf
P24SH4 400-900 1U
P24SH5 500-900 1U
P24SH6 600-900 1U
P24SH8 800-900 1U
P24SH9 900 1U
Guides
PG4 400-500 1U
PG5 500-900 1U
PG6 600-900 1U
PG7 700-900 1U
PG8 800-900 1U
PG9 900 1U
Rack Panels, Painted Steel
P24RP2UP 2U
P24RP3UP 3U
P24RP4UP 4U
P24RP5UP 5U
P24RP6UP 6U
P24RP8UP 8U
Rack Panels, Aluminum
P24RP2UA 2U
P24RP3UA 3U
P24RP4UA 4U
P24RP5UA 5U
P24RP6UA 6U
P24RP8UA 8U
Accessory
Fits
Frame
Depth
(mm) Fits
Accessory
Rack
Units
Req’d
Pull-Out Shelf
P23PSH5 500-900
P23PSH6 600-900
P23PSH8 800-900
P23PSH9 900
Pull-Out Shelf Lock
PSHLOCK Pull-Out
Shelf
Screw Package
AS1032 Rack Angles
Rack Panels
ASM5 Rack Angles
Rack Panels
ES1224 Rack Panels
Fixed Shelf
P23SH4 400-900 1U
P23SH5 500-900 1U
P23SH6 600-900 1U
P23SH8 800-900 1U
P23SH9 900 1U
Accessory
Fits
Frame
Depth
(mm) Fits
Accessory
Rack
Units
Req’d
Guides
PG4 400-500 1U
PG5 500-900 1U
PG6 600-900 1U
PG7 700-900 1U
PG8 800-900 1U
PG9 900 1U
Rack Panels, Painted Steel
P23RP1UP 1U
P23RP2UP 2U
P23RP3UP 3U
P23RP4UP 4U
Rack Panels, Aluminum
P23RP1UA 1U
P23RP2UA 2U
P23RP3UA 3U
P23RP4UA 4U
Rack Accessories, 23-in.

EQUIPMENT PROTECTIONSUBJECT TO CHANGE WITHOUT NOTICE
MODULAR ENCLOSURE SYSTEMS496
6
PROLINE™ INTERNAL COMPONENTS PaNEL aNd gRId MOuNtINg systEM
PaNEL aNd gRId M OuNtINg syst EM
FULL SUBPANEL
Bulletin: P20
Full Subpanel
Catalog Number Material H (mm) H (in.) W (mm) W (in.)
PPF76 Steel 585 23.03 530 20.87
PPF76G Conductive 585 23.03 530 20.87
PPF78 Steel 585 23.03 730 28.74
PPF78GConductive 585 23.03 730 28.74
PPF712 Steel 585 23.03 1130 44.49
PPF146 Steel 1285 50.59 530 20.87
PPF146GConductive 1285 50.59 530 20.87
PPF148 Steel 1285 50.59 730 28.74
PPF148G Conductive 1285 50.59 730 28.74
PPF1412 Steel 1285 50.59 1130 44.49
PPF1412GConductive 1285 50.59 1130 44.49
PPF166 Steel 1485 58.46 530 20.87
PPF166GConductive 1485 58.46 530 20.87
PPF168 Steel 1485 58.46 730 28.74
PPF168G Conductive 1485 58.46 730 28.74
PPF1612 Steel 1485 58.46 1130 44.49
PPF1612GConductive 1485 58.46 1130 44.49
PPF186 Steel 1685 66.34 530 20.87
PPF186GConductive 1685 66.34 530 20.87
PPF188 Steel 1685 66.34 730 28.74
PPF188G Conductive 1685 66.34 730 28.74
PPF1810 Steel 1685 66.34 930 36.61
PPF1810GConductive 1685 66.34 930 36.61
PPF1812 Steel 1685 66.34 1130 44.49
PPF1812GConductive 1685 66.34 1130 44.49
PPF1816 Steel 1685 66.34 1530 60.24
PPF1816GPlated 1685 66.34 1530 60.24
PPF204 Steel 1885 74.21 330 13.00
PPF206 Steel 1885 74.21 530 20.87
PPF206GConductive 1885 74.21 530 20.87
PPF207 Steel 1885 74.21 630 24.80
PPF207GConductive 1885 74.21 630 24.80
PPF208 Steel 1885 74.21 730 28.74
PPF208GConductive 1885 74.21 730 28.74
PPF2010 Steel 1885 74.21 930 36.61
PPF2010GConductive 1885 74.21 930 36.61
PPF2012 Steel 1885 74.21 1130 44.49
PPF2012GConductive 1885 74.21 1130 44.49
PPF2016 Steel 1885 74.21 1530 60.24
PPF2016GPlated 1885 74.21 1530 60.24
PPF226 Steel 2085 82.09 530 20.87
PPF226GConductive 2085 82.09 530 20.87
PPF227 Steel 2085 82.09 630 24.80
PPF227GConductive 2085 82.09 630 24.80
PPF228 Steel 2085 82.09 730 28.74
PPF228GConductive 2085 82.09 730 28.74
PPF2210 Steel 2085 82.09 930 36.61
PPF2210GConductive 2085 82.09 930 36.61
PPF2212 Steel 2085 82.09 1130 44.49
PPF2212GConductive 2085 82.09 1130 44.49
Consult Hoffman for delivery.
Additional Mounting Hardware
Catalog Number Description
PMKPF Additional Side Mounting Hardware (see Detail in drawing)

EQUIPMENT PROTECTION
MODULAR ENCLOSURE SYSTEMS 497
6
PROLINE™ INTERNAL COMPONENTS PaNEL aNd gRId MOuNtINg systEM
JOINING SUBPANEL
Bulletin: P20
Catalog Number Material H (mm) H (in.) P (mm) P (in.) Fits between full subpanels
PJP7G Conductive 585 23.03 548 21.57 PPF76, PPF78, PPF712
PJP14 Steel 1285 50.59 1248 49.13 PPF146, PPF148, PPF1412
PJP14G Conductive 1285 50.59 1248 49.13 PPF146, PPF148, PPF1412
PJP16 Steel 1485 58.46 1448 57.00 PPF166, PPF167, PPF168, PPF1612
PJP16G Conductive 1485 58.46 1448 57.00 PPF166, PPF167, PPF168, PPF1612
PJP18 Steel 1685 66.34 1648 64.87 PPF186, PPF187, PPF188, PPF1810, PPF1812, PPF1816
PJP18G Conductive 1685 66.34 1648 64.87 PPF186, PPF187, PPF188, PPF1810, PPF1812, PPF1816
PJP20 Steel 1885 74.21 1848 72.75 PPF206, PPF207, PPF208, PPF2010, PPF2012, PPF2016
PJP20G Conductive 1885 74.21 1848 72.75 PPF206, PPF207, PPF208, PPF2010, PPF2012, PPF2016
PJP22 Steel 2085 82.09 2048 80.62 PPF226, PPF227, PPF228, PPF2210, PPF2212, PPF2216
PJP22G Conductive 2085 82.09 2048 80.62 PPF226, PPF227, PPF228, PPF2210, PPF2212, PPF2216
Consult Hoffman for delivery

EQUIPMENT PROTECTIONSUBJECT TO CHANGE WITHOUT NOTICE
MODULAR ENCLOSURE SYSTEMS498
6
PROLINE™ INTERNAL COMPONENTS PaNEL aNd gRId MOuNtINg systEM
PARTIAL SUBPANEL
Bulletin: P20
Catalog Number Material H (mm) H (in.) W (mm) W (in.) Fits Frame
PPP46 Steel 360 14.17 530 20.87 700 mm or taller
PPP46G Conductive 360 14.17 530 20.87 700 mm or taller
PPP47 Steel 360 14.17 630 24.80 700 mm or taller
PPP47G Conductive 360 14.17 630 24.80 700 mm or taller
PPP48 Steel 360 14.17 730 28.74 700 mm or taller
PPP48G Conductive 360 14.17 730 28.74 700 mm or taller
PPP412 Steel 360 14.17 1130 44.49 700 mm or taller
PPP412G Conductive 360 14.17 1130 44.49 700 mm or taller
PPP86 Steel 735 28.94 530 20.87 1400 mm or taller
PPP86G Conductive 735 28.94 530 20.87 1400 mm or taller
PPP87 Steel 735 28.94 630 24.80 1400 mm or taller
PPP88 Steel 735 28.94 730 28.74 1400 mm or taller
PPP88G Conductive 735 28.94 730 28.74 1400 mm or taller
PPP810 Steel 735 28.94 930 36.61 1400 mm or taller
PPP810G Conductive 735 28.94 930 36.61 1400 mm or taller
PPP96 Steel 835 32.87 530 20.87 1400 mm or taller
PPP96G Conductive 835 32.87 530 20.87 1400 mm or taller
PPP97 Steel 835 32.87 630 24.80 1400 mm or taller
PPP97G Conductive 835 32.87 630 24.80 1400 mm or taller
PPP98 Steel 835 32.87 730 28.74 1400 mm or taller
PPP98G Conductive 835 32.87 730 28.74 1400 mm or taller
PPP910 Steel 835 32.87 930 36.61 1400 mm or taller
PPP910G Conductive 835 32.87 930 36.61 1400 mm or taller
PPP106 Steel 935 36.81 530 20.87 1400 mm or taller
PPP106G Conductive 935 36.81 530 20.87 1400 mm or taller
PPP108 Steel 935 36.81 730 28.74 1400 mm or taller
PPP108G Conductive 935 36.81 730 28.74 1400 mm or taller
PPP116 Steel 1035 40.75 530 20.87 1400 mm or taller
PPP116G Conductive 1035 40.75 530 20.87 1400 mm or taller

EQUIPMENT PROTECTION
MODULAR ENCLOSURE SYSTEMS 499
6
PROLINE™ INTERNAL COMPONENTS PaNEL aNd gRId MOuNtINg systEM
SIDEMOUNT SUBPANEL
Bulletin: P20
Catalog Number Material H (mm) H (in.) W (mm) W (in.)
PPFSM76 Steel 608 23.94 447 17.60
PPFSM76G Conductive 608 23.94 447 17.60
PPFSM145 Steel 1308 51.50 347 13.66
PPFSM145G Conductive 1308 51.50 347 13.66
PPFSM146 Steel 1308 51.50 447 17.60
PPFSM148 Steel 1308 51.50 647 25.47
PPFSM148G Conductive 1308 51.50 647 25.47
PPFSM164G Conductive 1508 59.37 247 9.72
PPFSM165G Conductive 1508 59.37 347 13.66
PPFSM166 Steel 1508 59.37 447 17.60
PPFSM166G Conductive 1508 59.37 447 17.60
PPFSM168 Steel 1508 59.37 647 25.47
PPFSM168G Conductive 1508 59.37 647 25.47
PPFSM169 Steel 1508 59.37 747 29.41
PPFSM169G Conductive 1508 59.37 747 29.41
PPFSM184 Steel 1708 67.24 247 9.72
PPFSM185 Steel 1708 67.24 347 13.66
PPFSM185G Conductive 1708 67.24 347 13.66
PPFSM186 Steel 1708 67.24 447 17.60
PPFSM186G Conductive 1708 67.24 447 17.60
PPFSM188 Steel 1708 67.24 647 25.47
PPFSM188G Conductive 1708 67.24 647 25.47
PPFSM189 Steel 1708 67.24 747 29.41
PPFSM189G Conductive 1708 67.24 747 29.41
PPFSM204 Steel 1908 75.12 247 9.72
PPFSM204G Conductive 1908 75.12 247 9.72
PPFSM205 Steel 1908 75.12 347 13.66
PPFSM205G Conductive 1908 75.12 347 13.66
PPFSM206 Steel 1908 75.12 447 17.60
PPFSM206G Conductive 1908 75.12 447 17.60
PPFSM208 Steel 1908 75.12 647 25.47
PPFSM208G Conductive 1908 75.12 647 25.47
PPFSM209 Steel 1908 75.12 747 29.41
PPFSM209G Conductive 1908 75.12 747 29.41
PPFSM225 Steel 2108 82.99 347 13.66
PPFSM225G Conductive 2108 82.99 347 13.66
PPFSM226 Steel 2108 82.99 447 17.60
PPFSM226G Conductive 2108 82.99 447 17.60
PPFSM228 Steel 2108 82.99 647 25.47
PPFSM228G Conductive 2108 82.99 647 25.47
PPFSM229 Steel 2108 82.99 747 29.41
PPFSM229G Conductive 2108 82.99 747 29.41

EQUIPMENT PROTECTIONSUBJECT TO CHANGE WITHOUT NOTICE
MODULAR ENCLOSURE SYSTEMS500
6
PROLINE™ INTERNAL COMPONENTS PaNEL aNd gRId MOuNtINg systEM
PANEL SUPPORT BRACE
Bulletin: P20
Catalog Number L (mm) L (in.) Fits Panel Width (mm)
PSB10 911 35.87 1000
PSB12 1111 43.74 1200
PSB16 1511 59.49 1600
PSB18 1711 67.36 1800
SWINGOUT PANEL
Bulletin: P20
Catalog Number H (mm) H (in.) W (mm) W (in.) Fits Frame Fits Frame Width
PSP76 538 21.18 515 20.28 700 or taller 600
PSP146 1238 48.74 515 20.28 1400 or taller 600
PSP166 1438 56.61 515 20.28 1600 or taller 600
PSP186 1638 64.49 515 20.28 1800 or taller 600
PSP206 1838 72.36 515 20.28 2000 or taller 600
PSP226 2038 80.24 515 20.28 2200 tall 600
PSP77 538 21.18 615 24.21 700 or taller 700
PSP147 1238 48.74 615 24.21 1400 or taller 700
PSP207 1838 72.36 615 24.21 2000 or taller 700
PSP78 538 21.18 715 28.15 700 or taller 800
PSP148 1238 48.74 715 28.15 1400 or taller 800
PSP168 1438 56.61 715 28.15 1600 or taller 800
PSP188 1638 64.49 715 28.15 1800 or taller 800
PSP208 1838 72.36 715 28.15 2000 or taller 800
PSP228 2038 80.24 715 28.15 2200 tall 800

EQUIPMENT PROTECTION
MODULAR ENCLOSURE SYSTEMS 501
6
PROLINE™ INTERNAL COMPONENTS PaNEL aNd gRId MOuNtINg systEM
TRANSFORMER RAILS
Bulletin: P20
Catalog Number Length (mm) Length (in.)
PTR6 534 21.02
PTR8 734 28.90
PTR12 1134 44.65
GROUNDING BAR SYSTEM INDUSTRY STANDARDS
Bulletin: P20
Catalog Number Description
Length
mm/in.
Number of
Holes and
Screws M6
Number of
Holes and
Screws M5
PGS2K Fits 400-mm deep frame
front to back horizontally
200
7.87
3/5 10/10
PGS4K Fits 600-mm deep frame
front to back horizontally
400
15.75
9/11 20/20
PGS6K Fits 800-mm deep frame
front to back horizontally
600
23.62
15/17 30/31
PROLINE™ GROUNDING KIT
Bulletin: P9
Catalog Number
Wire
Size
Length Between
Ring Terminals
mm/in.
Ring Terminal
Hole Diameter
mm/in.
PGK 12 ga. 411
16.19
7
.29

EQUIPMENT PROTECTIONSUBJECT TO CHANGE WITHOUT NOTICE
MODULAR ENCLOSURE SYSTEMS502
6
PROLINE™ INTERNAL COMPONENTS PaNEL aNd gRId MOuNtINg systEM
CENTER UPRIGHT
Bulletin: P20
Catalog Number H (mm) H (in.) Fits Frame Height
PCU7 625 24.61 700
PCU14 1325 52.16 1400
Catalog Number H (mm) H (in.) Fits Frame Height
PCU16 1525 60.04 1600
PCU18 1725 67.91 1800
PCU20 1925 75.79 2000
PCU22 2125 83.66 2200
GRID SYSTEM
Grid Strap installation (side to side)
Grid strap installation
(vertical and horizontal grid straps) Full-height vertical grid strap

EQUIPMENT PROTECTION
MODULAR ENCLOSURE SYSTEMS 503
6
PROLINE™ INTERNAL COMPONENTS PaNEL aNd gRId MOuNtINg systEM
FULLHEIGHT VERTICAL GRID STRAPS
Bulletin: P20
Catalog Number L (mm) L (in.) Fits Frame Height
PGH3S7V 595 23.43 700
PGH3S14V 1295 50.98 1400
PGH3S16V 1495 58.86 1600
PGH3S18V 1695 66.73 1800
PGH3S20V 1895 74.61 2000
PGH3S22V 2095 82.48 2200
PROLINE™ FASTENER PACKAGES
Bulletin: DACCY, P20
Catalog Number Description Use in Pkg. Qty.
ASM5T M5 x 12 mm thread-forming Phillips hex head screws Round holes 20
PGFM6 Standard Package - M6 cage nuts and bolts Rectangular holes 20
PGFGM6 Grounding Package - M6 grounding cage nuts and bolts Tapped holes 20

EQUIPMENT PROTECTIONSUBJECT TO CHANGE WITHOUT NOTICE
MODULAR ENCLOSURE SYSTEMS504
6
PROLINE™ INTERNAL COMPONENTS swINg-Out Rack FRaMEs aNd accEssORIEs
swINg-Out R ack FRaME s aNd accEssO RIEs
PARTIAL SWINGOUT RACK FRAME
1. Swing-Out Rack Frame assemblies are supplied with mounting
supports. Swing-Out Rack Frames can also be installed in
right, left or both bays of 1200-mm wide frames using center
uprights.
2. Swing-out mounting supports mount to inside of frame at any
vertical location.
3. Mounting supports and swing-out frame can be located deeper
into frame using grid system straps. Deeper mounting affects
the degree of opening of swing-out frame.
Bulletin: P20
Catalog Number
Fits Frame
Width
Rack
Units
PSF6 600 16
PSF8 800 16
HEAVYDUTY SWINGOUT RACK FRAME
1. Swing-Out Rack Frame assemblies are supplied with mounting
supports. Swing-Out Rack Frames can also be installed in
right, left or both bays of 1200-mm wide frames using center
uprights.
2. Swing-out mounting supports mount to inside of frame at any
vertical location.
3. Mounting supports and swing-out frame can be located deeper
into frame using grid system straps. Deeper mounting affects
the degree of opening of swing-out frame.
Bulletin: P20
Catalog Number
H
mm/in.
W
mm/in.
Rack
Units
Fits Frame
Height
Fits Frame
Width
PSF76 538
21.18
496
19.53
10 700 or taller 600
PSF77 538
21.18
496
19.53
10 700 or taller 700
PSF78 538
21.18
496
19.53
10 700 or taller 800
PSF146 1215
47.83
496
19.53
25 1400 or taller 600
PSF148 1215
47.83
496
19.53
25 1400 or taller 800
PSF166 1438
56.61
496
19.53
30 1600 or taller 600
PSF168 1438
63.58
496
19.53
30 1600 or taller 800
PSF186 1615
63.58
496
19.53
34 1800 or taller 600
PSF188 1615
63.58
496
19.53
34 1800 or taller 800
PSF206 1838
72.36
496
19.53
39 2000 or taller 600
PSF207 1838
72.36
496
19.53
39 2000 or taller 700
PSF208 1838
72.36
496
19.53
39 2000 or taller 800
PSF226 2015
79.33
496
19.53
43 2200 tall 600
PSF227 2015
79.33
496
19.53
43 2200 tall 700
PSF228 2015
79.33
496
19.53
43 2200 tall 800

EQUIPMENT PROTECTIONSUBJECT TO CHANGE WITHOUT NOTICE
MODULAR ENCLOSURE SYSTEMS506
6
PROLINE™ INTERNAL COMPONENTS swINg-Out Rack FRaMEs aNd accEssORIEs
170DEGREE HINGE KIT
Bulletin: P20
Catalog Number Fits Cabinets
PSF170K 600, 700 and 800
SWINGOUT GUIDES
Bulletin: P20
Catalog Number Description
PSFG Swing-Out Guides

EQUIPMENT PROTECTION
MODULAR ENCLOSURE SYSTEMS 507
6
PROLINE™ INTERNAL COMPONENTS swINg-Out Rack FRaMEs aNd accEssORIEs
STOP ARM KIT
Bulletin: P20
Catalog Number Description
PSAK120 120-degree Stop Arm Kit
FILLER PANEL KIT
Bulletin: P20
Catalog Number
Swing
Frame
Height
Enclosure
Width Mounting
PFPK77LR 700 700 Left or Right
PFPK78LR 700 800 Left or Right
PFPK78C 700 800 Center
PFPK147LR 1400 700 Left or Right
PFPK148C 1400 800 Center
PFPK167LR 1600 700 Left or Right
PFPK168LR 1600 800 Left or Right
PFPK168C 1600 800 Center
PFPK187LR 1800 700 Left or Right
PFPK188LR 1800 800 Left or Right
PFPK188C 1800 800 Center
PFPK208LR 2000 800 Left or Right
PFPK208C 2000 800 Center
PFPK227LR 2200 700 Left or Right
PFPK228LR 2200 800 Left or Right
PFPK228C 2200 800 Center

EQUIPMENT PROTECTIONSUBJECT TO CHANGE WITHOUT NOTICE
MODULAR ENCLOSURE SYSTEMS508
6
PROLINE™ INTERNAL COMPONENTS PROLINE™ shELvEs, RaILs aNd LIghtINg PackagEs
PROLINE™ shELvEs, RaILs aNd LIghtINg PackagEs
FRAME PULLOUT SHELF
Bulletin: P20
Catalog Number D (mm) D (in.) J (mm) J (in.) Shelf Extension (mm) Shelf Extension (in.)
PFSHP66 461 18.15 475 18.70 450 17.72
PFSHP68 661 26.02 475 18.70 670 26.38
PFSHP86 461 18.15 675 26.58 450 17.72
PFSHP88 661 26.02 675 26.58 670 26.38
FRAME SHELF
Bulletin: P20
Catalog Number D (mm) D (in.) W (mm) W (in.)
PFSH64 300 11.81 548 21.57
PFSH65 400 15.75 548 21.57
PFSH66 500 19.68 548 21.57
PFSH68 700 27.56 548 21.57
PFSH69 800 31.50 548 21.57
PFSH75 400 15.75 648 25.51
PFSH76 500 19.68 648 25.51
PFSH78 700 27.56 648 25.51
PFSH84 300 11.81 748 29.45
PFSH85 400 15.75 748 29.45
PFSH86 500 19.68 748 29.45
PFSH88 700 27.56 748 29.45
PFSH89 800 31.50 748 29.45
PFSH104 300 11.81 948 37.32
PFSH105 400 15.75 948 37.32
PFSH106 500 19.68 948 37.32
PFSH108 700 27.56 948 37.32

EQUIPMENT PROTECTION
MODULAR ENCLOSURE SYSTEMS 509
6
PROLINE™ INTERNAL COMPONENTS PROLINE™ shELvEs, RaILs aNd LIghtINg PackagEs
PRINTER SHELF
Bulletin: P20
Catalog Number Fits (mm) W (mm) W (in.)
PPSH66 600 x 600 or 600 x 800 464 18.27
PPSH86 800 x 600 or 800 x 800 663 26.10
PPSH66 can be installed with paper slots positioned front and back or right and left.
Grid straps are required when mounting printer shelf in frames deeper than 600 mm.
WIRE MANAGEMENT RAILS
Bulletin: P20
Catalog Number L (mm) L (in.)
Total
Length (mm)
Total
Length (in.)
Fits Frame
Depth
PWMR4 275 10.83 297 11.69 400
PWMR5 375 14.76 397 15.63 500
PWMR6 475 18.70 497 19.57 600
PWMR8 675 26.58 697 27.44 800
PWMR9 775 30.51 797 31.38 900
DOORACTIVATED LIGHT SWITCH KIT
Bulletin: P20
Catalog Number Description
PLFSWD Door-activated light switch kit

EQUIPMENT PROTECTIONSUBJECT TO CHANGE WITHOUT NOTICE
MODULAR ENCLOSURE SYSTEMS510
6
PROLINE™ INTERNAL COMPONENTS Rack-MOuNt aNgLEs aNd accEssORIEs
Rack-MOuNt aNgLEs aNd accEssORIEs
PROLINE™ RACK ANGLES OVERVIEW
Static Load Notes
19IN. RACK ANGLES
Bulletin: P20
Catalog Number Hole H (mm) H (in.) Fits Frame Rack Units
PRA197TH Square 578 22.77 700 mm 13
PRA197TP Tapped 578 22.77 700 mm 13
PRA198TH Square 712 28.02 800 mm 16
PRA198TP Tapped 712 28.02 800 mm 16
PRA1914TH Square 1290 50.77 1400 mm 29
PRA1914TP Tapped 1290 50.77 1400 mm 29
PRA1916TH Square 1467 57.77 1600 mm 33
PRA1916TP Tapped 1467 57.77 1600 mm 33
PRA1918TH Square 1690 66.52 1800 mm 38
PRA1918TP Tapped 1690 66.52 1800 mm 38
PRA1920TH Square 1867 73.52 2000 mm 42
PRA1920TP Tapped 1867 73.52 2000 mm 42
PRA1922TH Square 2090 82.27 2200 mm 47
PRA1922TP Tapped 2090 82.27 2200 mm 47
Vertical holes spaced in 1.75-in. (44.5-mm) increments.

EQUIPMENT PROTECTION
MODULAR ENCLOSURE SYSTEMS 511
6
PROLINE™ INTERNAL COMPONENTS Rack-MOuNt aNgLEs aNd accEssORIEs
23IN. RACK ANGLES
Bulletin: P20
Catalog Number Hole
Height
mm/in. Fits Frame Height Rack Units
PRA237TP Tapped 584
22.99
700 mm or taller 13
PRA2314TP Tapped 1270
50.00
1400 mm or taller 29
PRA2316TP Tapped 1473
57.99
1600 mm or taller 33
PRA2318TP Tapped 1676
65.98
1800 mm or taller 38
PRA2320TP Tapped 1879
73.98
2000 mm 42
PRA2322TP Tapped 2083
82.00
2200 mm 42
Vertical holes spaced in 1.00 in. (25.4mm) increments.
24IN. RACK ANGLES
Bulletin: P20
Catalog Number Hole H (mm) H (in.) Fits Frame Rack Units
PRA247TH Square 578 22.77 700 mm 13
PRA247TP Tapped 578 22.77 700 mm 13
PRA2414TH Square 1245 49.02 1400 mm 29
PRA2414TP Tapped 1245 49.02 1400 mm 29
PRA2416TH Square 1467 57.77 1600 mm 33
PRA2416TP Tapped 1467 57.77 1600 mm 33
PRA2418TH Square 1690 66.52 1800 mm 38
PRA2418TP Tapped 1690 66.52 1800 mm 38
PRA2420TH Square 1867 73.52 2000 mm 42
PRA2420TP Tapped 1867 73.52 2000 mm 42
PRA2422TH Square 2090 82.27 2200 mm 47
PRA2422TP Tapped 2090 82.27 2200 mm 47
Vertical holes spaced in 1.75-in. (44.5-mm) increments.

EQUIPMENT PROTECTIONSUBJECT TO CHANGE WITHOUT NOTICE
MODULAR ENCLOSURE SYSTEMS512
6
PROLINE™ INTERNAL COMPONENTS Rack-MOuNt aNgLEs aNd accEssORIEs
METRIC RACK ANGLES
Bulletin: P20
Catalog Number H (mm) H (in.)
Fits Frame
Height Rack Units
PRAM7 575 22.64 700 mm 22
PRAM14 1275 50.20 1400 mm 29
PRAM16 1475 58.07 1600 mm 33
PRAM18 1675 65.94 1800 mm 38
PRAM20 1875 73.82 2000 mm 42
PRAM22 2075 81.69 2200 mm 47
Vertical holes spaced in 25-mm increments.
RACK ANGLE ADAPTER BRACKET
Bulletin: P20
Catalog Number Gauge Use With
PBRAA 14 Rack-Mount Slides A16SL2U
FRAME ACCESSORY BRACKET
Bulletin: P20
PP
PP
'
Catalog Number Description D (mm) D (in.)
PFB19 19-in. EIA spacing 36 1.42
PFB23 23-in. EIA spacing 36 1.42
PFB24 24-in. EIA spacing 22 0.87
PFBM Metric IEC 91721 spacing 36 1.42

EQUIPMENT PROTECTION
MODULAR ENCLOSURE SYSTEMS 513
6
PROLINE™ INTERNAL COMPONENTS Rack-MOuNt aNgLEs aNd accEssORIEs
PULLOUT SHELF
Rack accessories that are shorter than the enclosure depth can be
mounted to rack angles or frame accessory brackets attached to grid
straps. Order these items separately.
Bulletin: P20
Catalog Number
D
mm/in.
J
mm/in.
Shelf Extension
mm/in. Fits Rack Width
P19PSH5 361
14.21
403
15.87
350
14.00
19 in.
P19PSH6 461
18.15
403
15.87
450
18.00
19 in.
P19PSH8 661
26.02
403
15.87
670
26.50
19 in.
P19PSH9 761
29.96
403
15.87
770
30.00
19 in.
P23PSH4 261
10.28
505
19.88
250
9.84
23 in.
P23PSH5 361
14.21
505
19.88
350
14.00
23 in.
P23PSH6 461
18.15
505
19.88
450
18.00
23 in.
P23PSH8 661
26.02
505
19.88
670
26.50
23 in.
P23PSH9 761
29.96
505
19.88
770
30.00
23 in.
P24PSH5 361
14.21
530
20.87
350
14.00
24 in.
P24PSH6 461
18.15
530
20.87
450
18.00
24 in.
P24PSH8 661
26.02
530
20.87
670
26.50
24 in.
P24PSH9 761
29.96
530
20.87
770
30.00
24 in.
PULLOUT SHELF LOCK
Bulletin: P20
Catalog Number Description
PSHLOCK Pull-Out Shelf Lock
FIXED SHELF
Rack accessories that are shorter than the enclosure depth can be
mounted to rack angles or frame accessory brackets attached to grid
straps. Order these items separately.
Bulletin: P20
Catalog Number
D
mm/in.
E
mm/in.
F
mm/in.
J
mm/in.
Fits Rack
Width
P19SH4 249
9.80
164.8
6.49
218.4
8.60
477
18.78
19 in.
P19SH5 349
13.74
264.8
10.43
318.4
12.54
477
18.78
19 in.
P19SH6 449
17.68
364.8
14.36
418.4
16.47
477
18.78
19 in.
P19SH8 649
25.55
564.8
22.24
618.4
24.35
477
18.78
19 in.
P19SH9 749
29.49
664.8
26.17
718.4
28.28
477
18.78
19 in.
P23SH4 249
9.80
170
6.69
223.6
8.80
578.6
22.78
23 in.
P23SH5 349
13.74
270
10.63
323.6
12.74
578.6
22.78
23 in.
P23SH6 449
17.68
370
14.57
423.6
16.68
578.6
22.78
23 in.
P23SH8 649
25.55
570
22.44
623.6
24.55
578.6
22.78
23 in.
P23SH9 749
29.49
670
26.38
723.6
28.49
578.6
22.78
23 in.
P24SH5 349
13.74
264.8
10.43
318.4
12.54
604
23.78
24 in.
P24SH6 449
17.68
364.8
14.36
418.4
16.47
604
23.78
24 in.
P24SH8 649
25.55
564.8
22.24
618.4
24.35
604
23.78
24 in.
P24SH9 749
29.49
664.8
26.17
718.4
28.28
604
23.78
24 in.

EQUIPMENT PROTECTIONSUBJECT TO CHANGE WITHOUT NOTICE
MODULAR ENCLOSURE SYSTEMS514
6
PROLINE™ INTERNAL COMPONENTS Rack-MOuNt aNgLEs aNd accEssORIEs
GUIDES
Rack accessories that are shorter than the enclosure depth can be
mounted to rack angles or frame accessory brackets attached to grid
straps. Order these items separately.
Bulletin: P20
Catalog Number L (mm) L (in.) Frame Depth (mm) Frame Depth (in.)
PG4 217 8.54 400 15.75
PG5 317 12.48 500 19.68
PG6 417 16.42 600 23.62
PG7 517 20.35 700 27.56
PG8 617 24.29 800 31.49
PG9 717 28.23 900 35.43
FILLER PANEL FOR RACK ANGLES
Bulletin: P20
Catalog Number Description
PFP19RA Filler Panel for Rack Angles
SCREW PACKAGE
Bulletin: A80, DACCY, X20
Catalog Number Description Pkg. Qty.
AS1032 10-32 x .75 20
ES1224 12-24 x .5 20
ASM5 Metric M5 x 20 20
ASM6 Metric M6 x 16 20
ASM6250 Metric M6 x 16 250
CAGE NUT PACKAGE
Bulletin: DACCY
Catalog Number Description Pkg. Qty.
P1032CN 10-32 thread 20
P1224CN 12-24 thread 20
PM5CN Metric M5 thread 20
PM6CN Metric M6 thread 20

EQUIPMENT PROTECTION
MODULAR ENCLOSURE SYSTEMS 515
6
PROLINE™ INTERNAL COMPONENTS Rack-MOuNt aNgLEs aNd accEssORIEs
RACK PANELS
Bulletin: P20
Catalog Number Material Rack Angle Size Rack Units
P19RP1UA Aluminum 19 in. 1
P19RP1UP Steel 19 in. 1
P19RP2UA Aluminum 19 in. 2
P19RP2UP Steel 19 in. 2
P19RP3UA Aluminum 19 in. 3
P19RP3UP Steel 19 in. 3
P19RP4UA Aluminum 19 in. 4
P19RP4UP Steel 19 in. 4
P19RP5UA Aluminum 19 in. 5
P19RP5UP Steel 19 in. 5
P19RP6UP Steel 19 in. 6
P19RP6UA Aluminum 19 in. 6
P19RP7UA Aluminum 19 in. 7
P19RP7UP Steel 19 in. 7
P19RP8UP Steel 19 in. 8
P19RP8UA Aluminum 19 in. 8
P19RP9UA Aluminum 19 in. 9
P19RP9UP Steel 19 in. 9
P19RP10UA Aluminum 19 in. 10
P19RP10UP Steel 19 in. 10
P19RP11UA Aluminum 19 in. 11
P19RP11UP Steel 19 in. 11
P19RP12UA Aluminum 19 in. 12
P19RP12UP Steel 19 in. 12
P19RP16UA Aluminum 19 in. 16
P19RP16UP Steel 19 in. 16
P23RP1UA Aluminum 23 in. 1
P23RP1UP Steel 23 in. 1
P23RP2UP Steel 23 in. 2
P23RP3UA Aluminum 23 in. 3
P23RP3UP Steel 23 in. 3
P23RP4UA Aluminum 23 in. 4
P23RP4UP Steel 23 in. 4
P24RP2UA Aluminum 24 in. 2
P24RP2UP Steel 24 in. 2
P24RP3UP Steel 24 in. 3
P24RP4UA Aluminum 24 in. 4
P24RP4UP Steel 24 in. 4
P24RP5UA Aluminum 24 in. 5
P24RP5UP Steel 24 in. 5
P24RP6UP Steel 24 in. 6
P24RP8UA Aluminum 24 in. 8
P23RP2UA Aluminum 23 in. 2
P24RP8UP Steel 24 in. 8
P24RP3UA Aluminum 24 in. 3

EQUIPMENT PROTECTIONSUBJECT TO CHANGE WITHOUT NOTICE
MODULAR ENCLOSURE SYSTEMS516
6
PROLINE™ INTERNAL COMPONENTS Rack-MOuNt aNgLEs aNd accEssORIEs
ADJUSTABLE RACKMOUNTING RAILS
Bulletin: DPY, P20
Catalog Number L (mm) L (in.) Fits Frame Depth Finish
PBARA6 511 20.11 600 Plated
PBARA8 711 27.98 800 Plated
PBARA9 811 31.92 900 Plated
PBARA9B 811 31.92 900 Painted RAL 9005 Black
PBARA10B 911 35.86 1000 Painted RAL 9005 Black
PBARA11B 1011 39.79 1100 Painted RAL 9005 Black
PBARA12B 1111 43.73 1200 Painted RAL 9005 Black
FRAMEREDUCING BRACKETS FOR FRAMES OR GRID
STRAPS
Bulletin: P20
Catalog Number
Reduces
Frame
Width W (mm) W (in.) Converts Frame Width
PRB50 50 50 1.97 From 700 to 600
From 800 to 700 mm
PRB100 100 100 3.94 From 800 to 600
From 800 to 700
From 700 to 600 mm
PRB200 200 200 7.87 From 1000 to 600
From 1000 to 800
From 800 to 600 mm

EQUIPMENT PROTECTION
MODULAR ENCLOSURE SYSTEMS 517
6
PROLINE™ INTERNAL COMPONENTS Rack-MOuNt aNgLEs aNd accEssORIEs
SLIDES
Needs to be used with the Rack Angle Adapter Bracket (PBRAA,
PBRAA19 or PBRAA24).
Bulletin: P20
Catalog Number Quantity
A16SL2U 2
RACKANGLE MOUNTED DRAWER
Bulletin: P20
Catalog Number H (mm) H (in.)
Fits Rack
Width
Rack
Units
P19DR1US 43 1.69 19 in. 1
P19DR2US 88 3.47 19 in. 2
P19DR3US 132 5.20 19 in. 3
WRITING SURFACE
Bulletin: P20
Catalog Number Fits
P19WS Drawer

EQUIPMENT PROTECTIONSUBJECT TO CHANGE WITHOUT NOTICE
MODULAR ENCLOSURE SYSTEMS518
6
PROLINE™ ASSEMBLED ENCLOSURES PROLINE-Pc MOduLaR ENcLOsuREs aNd accEssORIEs
PROLINE™ assEMbLEd ENcLOsuREs
PROLINE-Pc MOduLaR ENcLOsuREs aNd accEssORIEs
PROLINE™PC, TYPE 12
INDUSTRY STANDARDS
APPLICATION
FEATURES
Bulletin: P20PC, P20S
Mild Steel
Catalog Number AxBxC mm/in.
M
mm/in.
N
mm/in.
P
mm/in.
R
mm/in.
Top Door Opening, Height
mm/in.
Top Door Opening, Width
mm/in.
Bottom Door Opening, Height
mm/in.
Bottom Door Opening, Width
mm/in.
PPC1666 1600 x 600 x 600
62.99 x 23.62 x 23.62
343
13.50
366
14.41
586
23.07
1363
53.66
558
21.97
536
21.10
739
29.09
536
21.10
PPC1668 1600 x 600 x 800
62.99 x 23.62 x 31.50
343
13.50
366
14.41
586
23.07
1363
53.66
558
21.97
536
21.10
739
29.09
536
21.10
PPC1686 1600 x 800 x 600
62.99 x 31.50 x 23.62
343
13.50
566
22.28
586
23.07
1363
53.66
558
21.97
736
28.98
739
29.09
736
28.98
PPC1866 1800 x 600 x 600
70.87 x 23.62 x 23.62
343
13.50
366
14.41
786
30.94
1463
57.60
758
29.84
536
21.10
739
29.09
536
21.10
PPC1868 1800 x 600 x 800
70.87 x 23.62 x 31.50
343
13.50
366
14.41
786
30.94
1563
61.54
958
37.72
536
21.10
739
29.09
536
21.10
PPC1886 1800 x 800 x 600
70.87 x 31.50 x 23.62
343
13.50
566
22.28
786
30.94
1563
61.54
958
37.72
536
21.10
739
29.09
536
21.10
PPC2066 2000 x 600 x 600
78.74 x 23.62 x 23.62
343
13.50
366
14.41
986
38.82
1563
61.54
958
37.72
736
28.98
739
29.09
736
28.98
PPC2068 2000 x 600 x 800
78.74 x 23.62 x 31.50
343
13.50
366
14.41
986
38.82
1563
61.54
958
37.72
736
28.98
739
29.09
736
28.98
PPC2086 2000 x 800 x 600
78.74 x 31.50 x 23.62
343
13.50
566
22.28
986
38.82
1563
61.54
958
37.72
736.1
28.98
738.9
29.09
736.1
28.98
PPC2088 2000 x 800 x 800
78.74 x 31.50 x 31.50
343
13.50
566
22.28
986
38.82
1563
61.54
958
37.72
736.1
28.98
738.9
29.09
736.1
28.98
100-mm solid base is included in the A dimension.
Stainless Steel
Catalog Number AxBxC mm/in.
M
mm/in.
N
mm/in.
P
mm/in.
R
mm/in.
Top Door
Opening Height
mm/in.
Top Door
Opening Width
mm/in.
Bottom Door
Opening Height
mm/in.
Bottom Door
Opening Width
mm/in.
PPC1666SS 1688 x 608 x 599
66.46 x 23.94 x 23.58
343
13.50
366
14.41
586
23.07
1363
53.66
558
21.97
536
21.10
739
29.09
536
21.10
100-mm solid base is included in the A dimension.

EQUIPMENT PROTECTIONSUBJECT TO CHANGE WITHOUT NOTICE
MODULAR ENCLOSURE SYSTEMS520
6
PROLINE™ ASSEMBLED ENCLOSURES PROLINE-Pc MOduLaR ENcLOsuREs aNd accEssORIEs

EQUIPMENT PROTECTION
MODULAR ENCLOSURE SYSTEMS 521
6
PROLINE™ ASSEMBLED ENCLOSURES PROLINE-Pc MOduLaR ENcLOsuREs aNd accEssORIEs
SELECTION MATRIX
PROLINE™ ASSEMBLED CABINETS PROLINE™-PC MODULAR ENCLOSURES AND ACCESSORIES
Spec-00537 F
EQUIPMENT PROTECTION SOLUTIONSSUBJECT TO CHANGE WITHOUT NOTICEMODULAR ENCLOSURE SYSTEMS1
763.422.2211
763.422.2600
Spec-00537
F
MODULAR ENCLOSURE SYSTEMS
PROLINE™ ASS EMBLED CABI NETS
PROLINE™-PC MODUL AR ENCLOSUR ES AND ACCESSORIES
SELECTION MATRIx
Component Summary
Standard
Assembled
Enclosure
Catalog Number Frame Window Door
(Top) Solid Door
(Bottom) Keyboard
Compartment Solid Top
PPC1666 PFPC1666 PDWT86PC PDS86 PKBC6R PT66
PPC1668 PFPC1668 PDWT86PC PDS86 PKBC6R PT68
PPC1686 PFPC1686 PDWT88PC PDS88 PKBC8R PT86
PPC1866 PFPC1866 PDWT96PC PDS86 PKBC6R PT66
PPC1868 PFPC1868 PDWT96PC PDS86 PKBC6R PT68
PPC1886 PFPC1886 PDWT98PC PDS88 PKBC8R PT86
PPC2066 PFPC2066 PDWT106PC PDS86 PKBC6R PT66
PPC2068 PFPC2068 PDWT106PC PDS86 PKBC6R PT68
PPC2086 PFPC2086 PDWT108PC PDS88 PKBC8R PT86
PPC2088 PFPC2088 PDWT108PC PDS88 PKBC8R PT88

EQUIPMENT PROTECTIONSUBJECT TO CHANGE WITHOUT NOTICE
MODULAR ENCLOSURE SYSTEMS522
6
PROLINE™ ASSEMBLED ENCLOSURES PROLINE-Pc MOduLaR ENcLOsuREs aNd accEssORIEs
PROLINE™ ASSEMBLED CABINETS PROLINE™-PC MODULAR ENCLOSURES AND ACCESSORIES
Spec-00537 F PH 763.422.2211 • FA X 763.422.2600 • PENTAIRPROTECT.COMEQUIPMENT PROTECTION SOLUTIONS MODULAR ENCLOSURE SYSTEMS 2
Door, Cover and Front Options
Frame
Catalog
Number Window
Doors Covers Solid Doors Keyboard
Compartment Keyboard
Shelf Consolet
Compartment Access
Cover
Top Front PFPC1666 PDWT86PC PCST86PC PDST86PC
PFPC1668 PDWT86PC PCST86PC PDST86PC
PFPC1686 PDWT88PC PCST88PC PDST88PC
PFPC1866 PDWT96PC PCST96PC PDST96PC
PFPC1868 PDWT96PC PCST96PC PDST96PC
PFPC1886 PDWT98PC PCST98PC PDST98PC
PFPC2066 PDWT106PC PCST106PC PDST106PC
PFPC2068 PDWT106PC PCST106PC PDST106PC
PFPC2086 PDWT108PC PCST108PC PDST108PC
PFPC2088 PDWT108PC PCST108PC PDST108PC
Middle Front PFPC1666 PKBC6R PKBS6 PCC6 PCS6
PFPC1668 PKBC6R PKBS6 PCC6 PCS6
PFPC1686 PKBC8R PKBS8 PCC8 PCS8
PFPC1866 PKBC6R PKBS6 PCC6 PCS6
PFPC1868 PKBC6R PKBS6 PCC6 PCS6
PFPC1886 PKBC8R PKBS8 PCC8 PCS8
PFPC2066 PKBC6R PKBS6 PCC6 PCS6
PFPC2068 PKBC6R PKBS6 PCC6 PCS6
PFPC2086 PKBC8R PKBS8 PCC8 PCS8
PFPC2088 PKBC8R PK BS8 PCC8 PCS8
Bottom
Front
PFPC1666 PDWG86 PCS86 PDS86
PFPC1668 PDWG86 PCS86 PDS86
PFPC1686 PDWG88 PCS88 PDS88
PFPC1866 PDWG86 PCS86 PDS86
PFPC1868 PDWG86 PCS86 PDS86
PPFC1886 PDWG88 PCS88 PDS88
PFPC2066 PDWG86 PCS86 PDS86
PFPC2068 PDWG86 PCS86 PDS86
PFPC2086 PDWG88 PCS88 PDS88
PFPC2088 PDWG88 PCS88 PDS88
Solid Base
(100mm) Solid Sides aSolid Door
(Rear) Frame Shelf Flush Pushbutton
Handle (keylock) Small Flush
Swing Handle
PB166 PSS166 PDS166 PFSH66 PFHKBL PSHKBL
PB168 PSS168 PDS166 PFSH68 PFHKBL PSHKBL
PB186 PSS166 PDS168 PFSH86 PFHKBL PSHKBL
PB166 PSS186 PDS186 PFSH66 PFHKBL PSHKBL
PB168 PSS188 PDS186 PFSH68 PFHKBL PSHKBL
PB186 PSS186 PDS188 PFSH86 PFHKBL PSHKBL
PB166 PSS206 PDS206 PFSH66 PFHKBL PSHKBL
PB168 PSS208 PDS206 PFSH68 PFHKBL PSHKBL
PB186 PSS206 PDS208 PFSH86 PFHKBL PSHKBL
PB188 PSS208 PDS208 PFSH88 PFHKBL PSHKBL
a Order two.

EQUIPMENT PROTECTION
MODULAR ENCLOSURE SYSTEMS 523
6
PROLINE™ ASSEMBLED ENCLOSURES PROLINE-Pc MOduLaR ENcLOsuREs aNd accEssORIEs
FRAMES
Bulletin: P20PC
Catalog Number AxBxC in. AxBxC mm
PFPC1666 62.20 x 23.58 x 23.15 1580 x 599 x 588
PFPC1668 62.99 x 23.62 x 31.50 1600 x 600 x 800
PFPC1686 62.99 x 31.50 x 23.62 1600 x 800 x 600
PFPC1866 70.87 x 23.62 x 23.62 1800 x 600 x 600
PFPC1868 70.87 x 23.62 x 31.50 1800 x 600 x 800
PFPC1886 70.87 x 31.50 x 23.62 1800 x 800 x 600
PFPC2066 78.74 x 23.62 x 23.62 2000 x 600 x 600
PFPC2068 78.74 x 23.62 x 31.50 2000 x 600 x 800
PFPC2086 78.74 x 31.50 x 23.62 2000 x 800 x 600
PFPC2088 78.74 x 31.50 x 31.50 2000 x 800 x 800
COVERS FOR UPPER FRONT
Bulletin: P20PC, P20S
Catalog Number Type Gauge
H
mm/in.
W
mm/in. Fits PC Frame
PCST86PC Steel 16 586
23.07
592
23.31
1600 x 600
PCST86PCSS Stainless Steel 16 586
23.07
592
23.31
1600 x 600
PCST96PC Steel 16 786
30.94
592
23.31
1800 x 600
PCST106PC Steel 16 986
38.82
592
23.31
2000 x 600
PCST106PCSS Stainless Steel 16 986
38.82
592
23.31
2000 x 600
PCST98PC Steel 14 786
30.94
792
31.18
1800 x 800
PCST108PC Steel 14 986
38.82
792
31.18
2000 x 800
DOORS FOR UPPER FRONT
Bulletin: P20PC, P20S
Catalog Number Type Gauge
H
mm/in.
W
mm/in. Fits PC Frame
PDST86PC Steel 16 586
23.07
591
23.27
1600 x 600
PDST86PCSS Stainless Steel 16 586
23.07
591
23.27
1600 x 600
PDST96PC Steel 16 786
30.94
591
23.27
1800 x 600
PDST106PC Steel 16 986
38.82
591
23.27
2000 x 600
PDST106PCSS Stainless Steel 16 986
38.82
591
23.27
2000 x 600
PDST88PC Steel 14 586
23.07
791
31.14
1600 x 800
PDST98PC Steel 14 786
30.94
791
31.14
1800 x 800
PDST108PC Steel 14 986
38.82
791
31.14
2000 x 800

EQUIPMENT PROTECTIONSUBJECT TO CHANGE WITHOUT NOTICE
MODULAR ENCLOSURE SYSTEMS524
6
PROLINE™ ASSEMBLED ENCLOSURES PROLINE-Pc MOduLaR ENcLOsuREs aNd accEssORIEs
WINDOW DOORS FOR UPPER FRONT
Bulletin: P20PC, P20S
Catalog Number Type Gauge
H
mm/in.
W
mm/in.
Window Size M x N
mm/in. Fits PC Frame
PDWT86PC Steel 16 586
23.07
591
23.27
343 x 366
13.50 x 14.41
1600 x 600
PDWT86PCSS Stainless Steel 16 586
23.07
591
23.27
343 x 366
13.50 x 14.41
1600 x 600
PDWT96PC Steel 16 786
30.94
591
23.27
343 x 366
13.50 x 14.41
1800 x 600
PDWT106PC Steel 16 986
38.82
591
23.27
343 x 366
13.50 x 14.41
2000 x 600
PDWT106PCSS Stainless Steel 16 986
38.82
591
23.27
343 x 366
13.50 x 14.41
2000 x 600
PDWT98PC Steel 14 786
30.94
791
31.14
343 x 566
13.50 x 22.28
1800 x 800
PDWT108PC Steel 14 986
38.82
791
31.14
343 x 566
13.50 x 22.28
2000 x 800
21-in. Monitor Window
Catalog Number
H
mm/in.
W
mm/in.
Window Size M x N
mm/in. Fits PC Frame
PDWTL86PC 586
23.07
592
23.31
436 x 451
17.17 x 17.76
1600 x 600
PDWTL96PC 786
30.94
592
23.31
436 x 451
17.17 x 17.76
1800 x 600
COVERS FOR LOWER FRONT
Bulletin: P20, P20S
Catalog Number Material Gauge
H
mm/in.
W
mm/in. Fits PC Frame
PCS86 Steel 16 767
30.20
592
23.31
600 wide
PCS86SS Stainless Steel 16 767
30.20
592
23.31
600 wide
PCS88 Steel 14 767
30.20
792
31.18
800 wide
DOORS FOR LOWER FRONT
Bulletin: P20PC, P20S
Catalog Number Material Gauge H (mm) H (in.) W (mm) W (in.)
Fits
PC Frame
PDS86 Steel 16 767 30.20 591 23.27 600 wide
PDS86SS Stainless Steel 16 767 30.20 591 23.27 600 wide
PDS88 Steel 14 767 30.20 791 31.14 800 wide

EQUIPMENT PROTECTION
MODULAR ENCLOSURE SYSTEMS 525
6
PROLINE™ ASSEMBLED ENCLOSURES PROLINE-Pc MOduLaR ENcLOsuREs aNd accEssORIEs
DOORS WITH WINDOWS FOR LOWER FRONT
Bulletin: P20, P20S
Catalog Number Material Window
H
mm/in.
W
mm/in.
Window Size
M x N
mm/in.
Fits PC
Frame
PDWG86 Aluminum Safety Glass 767
30.18
593
23.35
645 x 446
25.39 x 17.56
600 wide
PDWG86SS Stainless Steel Safety Glass 767
30.18
593
23.35
645 x 446
25.39 x 17.56
600 wide
PDWG88 Aluminum Safety Glass 767
30.18
793
31.22
645 x 646
25.39 x 25.43
800 wide
PDW86 Aluminum Polycarbonate 767
30.18
593
23.35
645 x 446
25.39 x 17.56
600 wide
KEYBOARD SHELF
Bulletin: P20PC
Catalog Number Clear Space D (mm) Clear Space D (in.)
PKBS6 563 22.17
PKBS8 763 30.04

EQUIPMENT PROTECTIONSUBJECT TO CHANGE WITHOUT NOTICE
MODULAR ENCLOSURE SYSTEMS526
6
PROLINE™ ASSEMBLED ENCLOSURES PROLINE-Pc MOduLaR ENcLOsuREs aNd accEssORIEs
KEYBOARD COMPARTMENT
Bulletin: P20
Catalog Number
F
mm/in.
G
mm/in.
J
mm/in.
K
mm/in.
M
mm/in.
W
mm/in.
PKBC6R 519
20.43
478
18.83
439
17.29
520
20.49
525
20.68
575
22.62
PKBC8R 722
28.42
678
26.70
639
25.16
720
28.36
725
28.55
774
30.49

EQUIPMENT PROTECTION
MODULAR ENCLOSURE SYSTEMS 527
6
PROLINE™ ASSEMBLED ENCLOSURES PROLINE-Pc MOduLaR ENcLOsuREs aNd accEssORIEs
KEYBOARD SHELVES WITH INTEGRATED KEYBOARD/
MOUSE
Bulletin: P20, P20S
Catalog Number Material Description
PEKBMC6 Steel Keyboard shelf with integrated keyboard and mouse
PEKBMC6SS Stainless Steel Keyboard shelf with integrated keyboard and mouse
20DEGREE CONTROL COMPARTMENT
Bulletin: P20, P20S
Catalog Number Material
PC20A6 Steel
PC20A6SS Stainless Steel
PC20A8 Steel
PC20A8SS Stainless Steel
CONSOLET COMPARTMENT
Bulletin: P20, P20S
Catalog Number Material
Clear Space D
mm/in.
PCC6 Steel 525
20.66
PCC8 Steel 725
28.54
PCDS8SS Stainless Steel 725
28.54

EQUIPMENT PROTECTIONSUBJECT TO CHANGE WITHOUT NOTICE
MODULAR ENCLOSURE SYSTEMS528
6
PROLINE™ ASSEMBLED ENCLOSURES PROLINE-Pc MOduLaR ENcLOsuREs aNd accEssORIEs
ACCESS COVER
Bulletin: P20PC, P20S
Catalog Number Material
B
mm/in.
PCS6 Steel 592
23.30
PCSA6SS Stainless Steel 592
23.30
PCS8 Steel 792
31.17
PCSA8SS Stainless Steel 792
31.17
WRITING DESK
Bulletin: P20PC
Catalog Number Description
B
mm/in.
PWD6 Writing Desk 592
23.30
PWD8 Writing Desk 792
31.17
PENCIL TRAY
Bulletin: P20

EQUIPMENT PROTECTIONSUBJECT TO CHANGE WITHOUT NOTICE
MODULAR ENCLOSURE SYSTEMS530
6
PROLINE™ ASSEMBLED ENCLOSURES PROLINE-sy MOduLaR ENcLOsuRE systEM
PROLINE-sy MO duLaR ENcLO suRE systEM
PROLINE™SY, TYPE 12
INDUSTRY STANDARDS
APPLICATION
FEATURES
NOTES
Bulletin: P20S, P20SY
Catalog Number AxBxC mm AxBxC in. Material
PSY1666 1600 x 600 x 600 62.99 x 23.62 x 23.62 Steel
PSY1666SS 1600 x 600 x 600 63.00 x 23.60 x 23.60 Stainless Steel
PSY1686 1600 x 800 x 600 62.99 x 31.50 x 23.62 Steel

EQUIPMENT PROTECTIONSUBJECT TO CHANGE WITHOUT NOTICE
MODULAR ENCLOSURE SYSTEMS532
6
PROLINE™ ASSEMBLED ENCLOSURES PROLINE-sy MOduLaR ENcLOsuRE systEM
SELECTION MATRIX
PROLINE™ ASSEMBLED ENCLOSURES proline™-sy modular enclosure system
Spec-00441 F
EQUIPMENT PROTECTION SOLUTIONSSUBJECT TO CHANGE WITHOUT NOTICEMODULAR ENCLOSURE SYSTEMS1
763.422.2211
763.422.2600
Spec-00441
F
MODULAR ENCLOSURE SYSTEMS
proline™ ass embled enc losures
proline™-sy m odular enc losure syste m
SELECTION MATRIX
Component Summary
Catalog Number
Steel Stainless Frames
Steel Stainless Solid Top
Steel Stainless Solid Door (Rear)
Steel Stainless Solid Door (Bottom)
Steel Stainless
PSY1666 PSY1666SS PFSY1666 PT66 PT66SS PDS166 PDS166SS PDS86 PDS86SS
PSY1686 PFSY1686 PT86 PDS168 PDS88
Catalog Number
Steel Stainless Solid Sidesa
Steel Stainless Solid Base (100 mm)
Steel Stainless Flush Pushbutton
Handle (keylock) Small Flush
Swing Handle
PSY1666 PSY1666SS PSS166 PSS166SS PB166 PB166SS PFHKBL PSHKBL
PSY1686 PSS166 PB186 PFHKBL PSHKBL
Catalog Number Grid Strapsa
PSY1666 PGH3S7 & PGH3S6
PSY1686 PGH3S9 & PGH3S6
a Quantity two.

EQUIPMENT PROTECTION
MODULAR ENCLOSURE SYSTEMS 533
6
PROLINE™ ASSEMBLED ENCLOSURES PROLINE-sy MOduLaR ENcLOsuRE systEM
PROLINE™ ASSEMBLED ENCLOSURES proline™-sy modular enclosure system
Spec-00441 F PH 763.422.2211 • FAX 763.422.2600 • PENTAIRPROTECT.COMEQUIPMENT PROTECTION SOLUTIONS MODULAR ENCLOSURE SYSTEMS 2
Door and Cover Front Options
Frame Catalog
Number
Steel Stainless
Window Doors
Steel Stainless Solid Doors
Steel Stainless Covers
Steel Stainless Solid Covers with
Ol Cutoutsb
Top Front PFSY1666 PSY1666SS PDWG86 PDWG86SS PDS86 PDS86SS PCS86 PCS86SS PCSK4
PCSK5
PCSK6
PCSK11
PCSK12
PCSK13
PCSK16
PCSK19
PCSK22
PCSK25
PCSK26
PCSK27
PCSK30
PFSY1686 PDWG88 PDS88 PSC88
Bottom Front PFSY1666 PFSY166SS PDWG86 PDWG86SS PDS86 PDS86SS PCS86 PCS86SS
PFSY1686 PDWG88 PDS88 PCS88

EQUIPMENT PROTECTIONSUBJECT TO CHANGE WITHOUT NOTICE
MODULAR ENCLOSURE SYSTEMS534
6
PROLINE™ ASSEMBLED ENCLOSURES PROLINE-sy MOduLaR ENcLOsuRE systEM
COVERS FOR UPPER AND LOWER FRONT
Covers with openings precut for various manufacturers’ HMI devices are
available in 600-mm sizes. See Covers with HMI Cutouts.
Bulletin: P20, P20S
Catalog Number Material Gauge W (mm) W (in.)
Fits SY
Frame
PCS86 Steel 16 592 23.31 600 wide
PCS86SS Stainless Steel 16 592 23.31 600 wide
PCS88 Steel 14 792 31.18 800 wide
Covers with openings precut for various manufacturers’ HMI devices are available in 600-mm sizes. See
Covers with OI Cutouts.
DOORS FOR UPPER AND LOWER FRONT
Bulletin: P20PC, P20S
Catalog Number Material Gauge W (mm) W (in.)
Fits SY
Frame
PDS86 Steel 16 591 23.27 600 wide
PDS86SS Stainless Steel 16 591 23.27 600 wide
PDS88 Steel 14 791 31.14 800 wide
DOORS WITH WINDOWS FOR UPPER AND LOWER
FRONT
Bulletin: P20, P20S
Catalog Number Material Window W (mm) W (in.) Window Size M x N (mm) Window Size M x N (in.) Fits SY Frame
PDWG86 Aluminum Glass 593 23.35 645 x 446 25.39 x 17.56 600 wide
PDWG86SS Stainless Steel Glass 593 23.35 645 x 446 25.39 x 17.56 600 wide
PDWG88 Aluminum Glass 793 31.22 646 x 645 25.43 x 25.39 800 wide
PDW86 Aluminum Polycarbonate 793 31.22 646 x 645 25.43 x 25.39 800 wide

EQUIPMENT PROTECTION
MODULAR ENCLOSURE SYSTEMS 535
6
PROLINE™ ASSEMBLED ENCLOSURES PROLINE-sy MOduLaR ENcLOsuRE systEM
COVERS WITH HMI CUTOUTS
Hoffman can provide pre-configured covers with cutouts to meet your specific requirements. Contact your local Hoffman Sales Representative for
more information.
Bulletin: P20SY
Catalog Number Manufacturer One Manufacturer Two
Pre-Cut for
Manufacturer
One’s Model
Pre-Cut for
Manufacturer
Two’s Model
Approx. HMI
Weight for
Manufacturer
One (lb.)
Approx. HMI
Weight for
Manufacturer
Two (lb.)
PCSK19 Allen-Bradley T60 71
PCSK4 Allen-Bradley Xycom T70 (1784-T35; 1784-T30A, C) 2050/60; 9450; 9475; 9485; 9486; 9403 27
PCSK5 Allen-Bradley PanelView 1200e / 1200 TouchSceen 33
PCSK6 Allen-Bradley PanelView 1200e / 1200 / 1400e Keypad 46
PCSK26 Allen-Bradley PanelView 1400e TouchScreen 45
PCSK30 Cutler-Hammer IDT Modicon PanelMate 4200 (monitor & keyboard PanelMate Plus 4200 (monitor & keyboard) 55 55
PCSK27 Cutler-Hammer IDT Modicon PanelMate 4000 TouchPanel PanelMate Plus 4000 55 55
PCSK25 Cutler-Hammer IDT Modicon PanelMate 4000 TouchScreen PanelMate Plus 4000 TouchScreen 52 52
PCSK22 Cutler-Hammer IDT Modicon PanelMate Compact PanelMate Compact 22
PCSK11 Nematron IWS-10x3, -15x3, 20x3, 25x3 22 22
PCSK12 Nematron IWS-1634, -2634, 45x4, -6515; Toolbox; MON4504 22 22
PCSK13 TCP SmartScreen (color) 22 22
PCSK16 Xycom 2000 22 22
See Catalog No. PCS86 in the Covers for Upper and Lower Fronts table for dimensions.

EQUIPMENT PROTECTIONSUBJECT TO CHANGE WITHOUT NOTICE
MODULAR ENCLOSURE SYSTEMS536
6
PROLINE™ GOLD SERIES ENCLOSURE SYSTEMS PROLINE™ gOLd sERIEs cOMPutER wORkstatION ENcLOsuRE systEM
PROLINE™ gOLd sERIEs ENcLOsuRE systEMs
PROLINE™ gOLd sERIEs cOMPutER wORkstatION ENcLOsuRE systEM
PROLINE™ GOLD SERIES COMPUTER WORKSTATION, TYPE 12
INDUSTRY STANDARDS
APPLICATION
SPECIFICATIONS
FINISH
ACCESSORIES
See also Accessories.
Bulletin: P10
Computer Workstation, Type 12
Catalog Number AxBxC mm/in.
Nominal
Size
Height
Nominal
Size
Width
Nominal
Size
Depth
K
mm/in.
M
mm/in.
N
mm/in.
O
mm/in.
P
mm/in.
R
mm/in.
S
mm/in.
Top
Door
Opening
Height
mm/in.
Top
Door
Opening
Width
mm/in.
Bottom
Door
Opening
Height
mm/in.
Bottom
Door
Opening
Width
mm/in.
Rear
Door
Opening
Height
mm/in.
Rear
Door
Opening
Width
mm/in.
PGLD1466CWS 1400 x 600 x 600
55.12 x 23.62 x 23.62
1400 600 600 886
34.88
319
12.56
440
17.32
544
21.42
471
18.54
1288
50.71
759
29.88
406
16.00
536
21.10
709
27.91
536
21.10
1454
57.25
536
21.10
PGLD1468CWS 1400 x 600 x 800
55.12 x 23.62 x 31.50
1400 600 800 886
34.88
319
12.56
440
17.32
544
21.42
471
18.54
1288
50.71
759
29.88
406
16.00
536
21.10
709
27.91
536
21.10
1454
57.25
536
21.10
PGLD1486CWS 1400 x 800 x 600
55.12 x 31.50 x 23.62
1400 800 600 886
34.88
319
12.56
640
25.20
715
28.15
471
18.54
1288
50.71
759
29.88
406
16.00
736
28.98
709
27.91
736
28.98
1454
57.25
736
28.98
PGLD1666CWS 1600 x 600 x 600
62.99 x 23.62 x 23.62
1600 600 600 916
36.06
316
12.44
440
17.32
542
21.34
468
18.43
1331
52.40
766
30.16
436
17.17
536
21.10
739
29.09
536
21.10
1511
59.49
536
21.10
PGLD1668CWS 1600 x 600 x 800
62.99 x 23.62 x 31.50
1600 600 800 916
36.06
316
12.44
440
17.32
542
21.34
468
18.43
1331
52.40
766
30.16
436
17.17
536
21.10
739
29.09
536
21.10
1511
59.49
536
21.10
PGLD1686CWS 1583 x 808 x 542
62.32 x 31.81 x 21.34
1600 800 600 916
36.06
316
12.44
640
25.20
714
28.11
468
18.43
1331
52.40
766
30.16
436
17.17
736
28.98
739
29.09
736
28.98
1511
59.49
736
28.98
PGLD1866CWS 1785 x 608 x 552
70.19 x 23.94 x 21.74
1800 600 600 916
36.06
517
20.35
440
17.32
679
26.73
669
26.34
1431
56.34
766
30.16
637
25.08
536
21.10
739
29.09
536
21.10
1711
67.36
536
21.10
PGLD1868CWS 1800 x 600 x 800
70.87 x 23.62 x 31.50
1800 600 800 916
36.06
517
20.35
440
17.32
679
26.73
669
26.34
1431
56.34
766
30.16
637
25.08
536
21.10
739
29.09
536
21.10
1711
67.36
536
21.10
PGLD1886CWS 1800 x 800 x 600
70.87 x 31.50 x 23.62
1800 800 600 916
36.06
517
20.35
640
25.20
823
32.40
669
26.34
1431
56.34
766
30.16
637
25.08
736
28.98
739
29.09
736
28.98
1711
67.36
736
29.98

EQUIPMENT PROTECTIONSUBJECT TO CHANGE WITHOUT NOTICE
MODULAR ENCLOSURE SYSTEMS538
6
PROLINE™ GOLD SERIES ENCLOSURE SYSTEMS PROLINE™ gOLd sERIEs cOMPutER wORkstatION ENcLOsuRE systEM
1200-mm Enclosure
Catalog Number AxBxC mm/in.
Nominal
Size
Height
Nominal
Size
Width
Nominal
Size
Depth
K
mm/in.
M
mm/in.
N
mm/in.
O
mm/in.
P
mm/in.
R
mm/in.
S
mm/in.
Top
Door
Opening
Height
mm/in.
Top
Door
Opening
Width
mm/in.
Bottom
Door
Opening
Height
mm/in.
Bottom
Door
Opening
Width
mm/in.
Rear
Door
Opening
Height
mm/in.
Rear
Door
Opening
Width
mm/in.
PGLD14126CWS 1400 x 1200 x 600
55.12 x 47.24 x 23.62
1400 1200 600 886
34.88
319
12.56
1040
40.94
1088
42.83
471
18.54
1288
50.71
759
29.88
406
16.00
1136
44.72
709
27.91
536
21.10
1454
57.25
1136
44.72

EQUIPMENT PROTECTION
MODULAR ENCLOSURE SYSTEMS 539
6
PROLINE™ GOLD SERIES ENCLOSURE SYSTEMS PROLINE™ gOLd sERIEs cOMPutER wORkstatION ENcLOsuRE systEM
SOLID COVERS
Bulletin: P10, P20
Catalog Number
Use on
Opening H (mm) H (in.) W (mm) W (in.)
Fits Console
A x B
PCS46CWS Upper Front 471 18.54 592 23.31 1400 x 600
PCS48CWS Upper Front 471 18.54 792 31.18 1400 x 800
PCS412GLD Upper Front 471 18.54 1192 46.93 1400 x 1200
PCS56CWS Upper Front 468 18.43 592 23.31 1600 x 600
PCS58CWS Upper Front 468 18.43 792 31.18 1600 x 800
PCS66CWS Upper Front 669 26.34 592 23.31 1800 x 600
PCS68CWS Upper Front 669 26.34 792 31.18 1800 x 800
PCS146GLD Rear 1482 58.35 592 23.31 1400 x 600
PCS1412GLD Rear 1482 58.35 1196 47.10 1400 x 1200
PCS166 Rear 1539 60.59 592 23.31 1600 x 600
PCS168 Rear 1539 60.59 792 31.18 1600 x 800
PCS186 Rear 1739 68.46 592 23.31 1800 x 600
PCS188 Rear 1739 68.46 792 31.18 1800 x 800
SOLID DOORS
Bulletin: P10
Catalog Number H x W (mm) H x W (in.)
Fits Console
A x B
PDS46GLD 471 x 592 18.54 x 23.30 1400 x 600
PDS48GLD 471 x 792 18.54 x 31.18 1400 x 800
PDS412GLD 471 x 1192 18.54 x 46.93 1400 x 1200
PDS56GLD 468 x 592 18.43 x 23.31 1600 x 600
PDS58GLD 468 x 792 18.43 x 31.18 1600 x 800
PDS66GLD 669 x 592 26.34 x 23.31 1800 x 600
PDS68GLD 669 x 792 26.34 x 31.18 1800 x 800

EQUIPMENT PROTECTIONSUBJECT TO CHANGE WITHOUT NOTICE
MODULAR ENCLOSURE SYSTEMS540
6
PROLINE™ GOLD SERIES ENCLOSURE SYSTEMS PROLINE™ gOLd sERIEs dEsk cONsOLEs aNd accEssORIEs
PROLINE™ gOLd sERIEs dEsk cONsOLEs aNd accEssORIEs
PROLINE™ GOLD SERIES DESK CONSOLE, TYPE 12
INDUSTRY STANDARDS
APPLICATION
SPECIFICATIONS
FINISH
ACCESSORIES
See also Accessories.
Bulletin: P11
Gold Series Desk Console
Catalog Number AxBxC mm/in.
D
mm/in.
E
mm/in.
F
mm/in.
G
mm/in.
H
mm/in.
N
mm/in.
P
mm/in.
R
mm/in.
PGLD1074DC 1000 x 700 x 400
39.37 x 27.56 x 15.75
779
30.69
540
21.27
384
15.12
635
25.00
552
21.72
485
19.11
569
22.40
611
24.07
PGLD10104DC 1000 x 1000 x 400
39.37 x 39.37 x 15.75
779
30.69
540
21.27
384
15.12
940
37.00
552
21.72
485
19.11
874
34.41
611
24.07
PGLD1275DC 1200 x 700 x 500
47.24 x 27.56 x 19.69
907
35.69
616
24.26
460
18.11
635
25.00
635
25.00
569
22.41
569
22.40
739
29.09
PGLD12105DC 1200 x 1000 x 500
47.24 x 39.37 x 19.69
907
35.69
616
24.26
460
18.11
940
37.00
635
25.00
569
22.41
874
34.41
739
29.09
Single-Bay Dual-Access Consoles
Catalog Number AxBxC mm/in.
D
mm/in.
E
mm/in. G (mm H (mm
N
mm/in.
P
mm/in. R (mm
S
mm/in.
PGLD1265DC 1200 x 600 x 500
47.24 x 23.62 x 19.69
907
35.71
616
24.26
602
23.70
635
25.00
569
22.40
536
21.10
739
29.09
998
39.27
PGLD1285DC 1200 x 800 x 500
47.24 x 31.50 x 19.69
907
35.71
616
24.26
802
31.57
635
25.00
569
22.40
736
28.98
739
29.09
998
39.27

EQUIPMENT PROTECTIONSUBJECT TO CHANGE WITHOUT NOTICE
MODULAR ENCLOSURE SYSTEMS542
6
PROLINE™ GOLD SERIES ENCLOSURE SYSTEMS PROLINE™ gOLd sERIEs dEsk cONsOLEs aNd accEssORIEs
PROLINE™ GOLD SERIES DOUBLEBAY DESK CONSOLE, TYPE 12
INDUSTRY STANDARDS
APPLICATION
SPECIFICATIONS
FINISH
ACCESSORIES
See also Accessories.
Bulletin: P11
Double-Bay Desk Console
Catalog Number AxBxC mm/in.
D
mm/in.
E
mm/in.
F
mm/in.
G
mm/in.
H
mm/in.
N
mm/in.
P
mm/in.
R
mm/in.
PGLD12135DC 1200 x 1300 x 500
47.24 x 51.18 x 19.69
907
35.71
616
24.25
460
18.11
1244
48.98
635
25.00
569
22.40
1178
46.38
739
29.09
PGLD12165DC 1200 x 1600 x 500
47.24 x 62.99 x 19.69
907
35.71
616
24.25
460
18.11
1549
60.98
635
25.00
569
22.40
1482
58.35
739
29.09
Double-Bay Dual-Access Desk Consoles
Catalog Number AxBxC mm/in.
D
mm/in.
E
mm/in.
G
mm/in.
H
mm/in.
N
mm/in.
P
mm/in.
R
mm/in.
S
mm/in.
T
mm/in.
PGLD12125DC 1200 x 1200 x 500
47.24 x 47.24 x 19.69
907
35.71
616
24.25
1202
47.32
635
25.00
569
22.40
536
21.10
739
29.09
998
39.29
1136
44.72

EQUIPMENT PROTECTION
MODULAR ENCLOSURE SYSTEMS 543
6
PROLINE™ GOLD SERIES ENCLOSURE SYSTEMS PROLINE™ gOLd sERIEs dEsk cONsOLEs aNd accEssORIEs
23(1,1*
3
23(1,1*
5
23(1,1*
3
%
23(1,1*
1
(
&
'
$
)
:
:
+
*
&/($563$&(
::
'RXEOH%D\
'HVN&RQVROH
723$1'%$&.
7
23(1,1*
%
23(1,1*
5
23(1,1*
3
+
*
&/($563$&(
::
23(1,1*
1
(
'
23(1,1*
6$
&
:
:
'RXEOH%D\
'XDO$FFHVV
'HVN&RQVROHV

EQUIPMENT PROTECTIONSUBJECT TO CHANGE WITHOUT NOTICE
MODULAR ENCLOSURE SYSTEMS544
6
PROLINE™ GOLD SERIES ENCLOSURE SYSTEMS PROLINE™ gOLd sERIEs dEsk cONsOLEs aNd accEssORIEs
WEDGE CONSOLES
Bulletin: P11
Catalog Number
A
mm/in.
C
mm/in.
S
mm/in.
T
mm/in.
PGLD45DC 1198
47.17
443
17.07
998
39.27
449
17.66
JOINING KIT
Bulletin: P20
Catalog Number Description
PJKDC PROLINE Desk Console Joining Kit
FULL BACK PANEL
Bulletin: P20
Catalog Number
D
mm/in.
E
mm/in. Enclosure
PP96G 869
34.20
564
22.20
PGLD1074DC
PP99G869
34.20
869
34.20
PGLD10104DC
PP116G1021
40.20
564
22.20
PGLD1275DC
PP119G1021
40.20
869
34.20
PGLD12105DC
PP1112G1021
40.20
1173
46.20
PGLD12135DC
PP1115G1021
40.20
1478
58.20
PGLD12165DC
PPP96G835
32.87
530
20.87
PGLD1265DC
PPP98G835
32.87
730
28.74
PGLD1285DC
PPP812G835
32.87
1130
44.49
PGLD12125DC

EQUIPMENT PROTECTION
MODULAR ENCLOSURE SYSTEMS 545
6
PROLINE™ GOLD SERIES ENCLOSURE SYSTEMS PROLINE™ gOLd sERIEs dEsk cONsOLEs aNd accEssORIEs
SIDEMOUNT PANEL
Bulletin: P20
Catalog Number D (mm) D (in.) E (mm) E (in.)
PPSM64G 627 24.70 343 13.63
PPSM84G 807 31.77 422 16.62
CASTER KIT
(Do not use on
plinth bases.)
Casters Maximum Load: 1000 lb.
(453 kg)
Never use casters while
transporting a cabinet by truck on
roadways.
Bulletin: P20
Catalog Number Description
PC1M12 Set of 4 Casters











