DP Instructions Installation Directions
2014-07-29
: Pdf 299927-Installationsheet 299927-InstallationSheet 425095 Batch6 unilog
Open the PDF directly: View PDF
.
Page Count: 4

Definite Purpose
Contactors & Starters
CR453A Series Contactors
CR454A Series Starters
Description
GE’s CR453A magnetic contactors provide a 2- or 3-pole
device for use in air conditioning units or other general
purpose applications. These instructions give information
about ratings, installation, accessories and wiring, overload
relay may be added if needed. Factory assembled starters
CR454A include overload relay.
Motor branch circuit and control circuit overcurrent
protection should be supplied in accordance with the
National Electrical Code or local code as required. CR453A
contactors are suitable for use on a circuit capable of
delivering not more than 5,000 RMS symmetrical amperes,
600 volts maximum when protected by fuses or a circuit
breaker having an interrupting rating not less than 5,000
RMS symmetrical amperes.
Use 75° C copper conductors only.
Ratings – Full Voltage, Non-Reversing
Frame Ratings Resistive
Size VAC FLA LRA Horsepower Rating Per
1 PH 3 PH Pole
120 150 2 –
CR453AB 240 25 150 3 7.5 35
480 125 – 10
600 100 – 10
120 180 2 –
CR453AC 240 30 180 5 10 40
480 150 – 15
600 120 – 15
120 240 3 –
CR453AD 240 40 240 7.5 10 50
480 200 – 20
600 160 – 20
Caution: Before installing in a nuclear application, determine that the product is intended for such use.
Warning: Disconnect power before installing or servicing.
Typical CR453A Series contactor
Power Terminal Tightening Torque (lbs.-in.)
Terminal Type Torque Values
Box Lug 40
Pressure Plate 20
Binding Screw 20

Contactor Installation
Before connecting to power supply:
1. Remove all packing.
2. Operate movable magnet and operating arm by
pressing down on the operating arm from the front
or side of the contactor to assure free movement.
3. Mount starter on a sturdy vertical support.
4. Make electrical connections as per wiring diagram.
For quick connect wiring, use UL recognized insulated
terminals.
Starter Installation
1. Remove all packing.
2. Motors with service factor of 1.15 or greater.
• Select overload relay as per the FLA shown in the
motor nameplate.
• Adjust the front mounted tripping current setting
dial to the motor FLA.
2. Motors with service factor less than 1.15
• Select overload relay as per the formula: Motor FLA
(shown in the motor plate) x 0.09.
• Adjust the front mounted tripping current setting dial
to the result of the above mentioned motor FLA.
3. Operate movable magnet and operating arm by pressing
down on the operating arm from the front or side of the
contactor to assure free movement.
4. Mount starter on a sturdy vertical support.
5. Make electrical connections as per wiring diagram.
For quick connect wiring, use UL recognized insulated
terminals.
6. Select the four modes by means of a front selector
lever.
7. Overload relays features tripping indicator, independent
& double break auxiliary tripping contacts (1NO+1NC)
with welding check lever.
8. Overload relay features thermal protection against
balanced overload, differential protection against
unbalanced overloads and also ambient temperature
compensation.
3.75
95,3
3.16
80,3
3.28
83,3
1.70
43,2
.35
8,9
MOUNTING HOLES FOR
#10 SCREWS(6 PLACES)
C
NC N
C
NC N
CC
NC N NC N
C
NC N NC
C
N
33
34 44
43
32 44
31 43
2214
13
14
21
24
13 23
3 PHASE LINE CONNECTION
3 PHASE LINE CONNECTION
L1 L2 L2
T1 T2 T2
OPTIONAL
AUX
CONTACTS
NOMENCLATURE
M-LINE CONTACTOR
NO-NORMALLY OPEN
NC-NORMALLY CLOSED
AUX CONTACT OPTONS
TYPE LEFT
SIDE
RIGHT
SIDE
1 SPDT
2 SPDT
2 NO
1 NO-1 NC
M
CONTROL
VOLTAGE
OPTIONAL
AUX
CONTACTS
FRONT VIEW
3.13
79,4
3.28
83,3
1.70
43,2
.24
6,0
2.25
57,0
1.71
43,3
3.87
98,2
5.68
144,3
.27
6,9
1.12
28,5
MOUNTING HOLES FOR
#10 SCREWS(6 PLACES)
Mounting Hole Dimensions
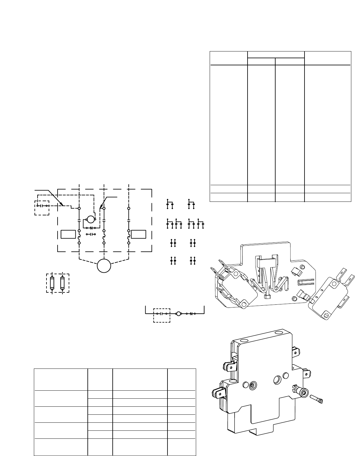
Contactor Wiring Diagram
CR454A Series Starter Dimensions

CR453A Accessories Standard
Accessory Contacts (with quick connects on C-2000
side-mount accessories) accessories
600V side-mount aux. 1NO-1NC CR453XC611 BCLL11
contact block 2NO CR453XC620 BCLL20
250V side-mount aux 1 SPDT CR453XC211 —
contact block 2 SPDT CR453XC222 —
600V front-mount aux. 1NO BCLF10 BCLF10
contact block 1NC BCLF01 BCLF01
Mechanical interlock,
side-mount 2NC CR453XM602 BEL02
Accessories
Check for Welded Contacts in Overload Relay
Disconnect power from device and control wiring from the
terminals of the relay. Connect the bell set or resistance-
measuring instrument across the relay terminals. Depress
and release the reset arm to ensure the relay is reset. In this
condition there should be continuity between the terminals.
In the tripped condition, the circuit between the terminals
should be open indicating the contacts are operating
normally. Remove the bell set or resistance measuring
apparatus, rewire the relay terminals and reset the relay for
normal operation.
For further technical details on overload relays, refer to
installation instructions GEH-6237A.
Accessory Kit Installation
Overload Relays
C
NC N
C
NC N
CC
NC N NC N
C
NC N NC
C
N
33
34 44
43
32 44
31 43
2214
13
14
21
24
13 23
L1 L2 L3
T1 T2 T3
OPTIONAL
AUX
CONTACTS
OL-THERMAL OVERLOAD RELAY
NO-NORMALLY OPEN
NC-NORMALLY CLOSED
AUX CONTACT OPTONS
TYPE LEFT
SIDE
RIGHT
SIDE
1 SPDT
2 SPDT
2 NO
1 NO-1 NC
M
OPTIONAL
AUX
CONTACTS
FRONT VIEW
MOTOR
M-LINE CONTACTOR
NOMENCLATURE
SPDT-SINGLE POLE DOUBLE THROW
ELEMENTARY
9695
1
REMOTE
CONTROL
L1 L2
OL
M
CONTROL CIRCUIT FUSING
(IF USED)
L1 L2
196
NOTE: ADDITIONAL CONTROL CIRCUIT PROTECTION
MAY BE REQUIRED.PREFER TO NATIONAL
ELECTRIC CODE OR LOCAL CODES.
FOR SEPERATE CONTROL SOURCE-OMIT WIRES A AND B.
CONNECT CONTROL SOURCE TO 1 ON CONTROL DEVICE.
AND 96 ON OVERLOAD RELAY.
CONTROL
REMOTE
1L1 L2 L3
95 96
97 98
WIRE B
WIRE A
Starter Wiring Diagram
Installation
Catalog No. Current Range (A)
Contactor Class 10 Class 20
RT1B RT12B 0.16-0.26
RT1C RT12C 0.25-0.41
RT1D RT12D 0.4-0.65
RT1F RT12F 0.65-1.1
RT1G RT12G 1.0-1.5
RT1H RT12H 1.3-1.9
RT1J RT12J 1.8-2.7
CR453AB, RT1K RT12K 2.5-4.1
AC, AD RT1L RT12L 4.0-6.3
RT1M RT12M 5.5-8.5
RT1N RT12N 8-12
RT1P RT12P 10-16
RT1S RT12S 14.5-18
RT1T RT12T 17.5-22
RT1U RT12U 21-26
CR453AC, AD RT1V RT12V 25-32
CR453AD RT1W RT12W 30-40
Typical 250V side auxiliary contact kit.
Typical 600V side auxiliary contact kit.

GE Industrial Systems
General Electric Company
41 Woodford Avenue, Plainville, CT 06062
www.GEindustrial.com
© 2001 General Electric Company
e-DEH-40445 0801
These instructions do not purport to cover all details or variations in equipment nor to provide for every possible contingency to be met in connection
with installation, operation or maintenance. Should particular problems arise which are not covered sufficiently for the Purchaser’s purposes the
matter should be referred to the nearest GE Industrial Systems sales office.
Front-Mount Auxiliary Contacts Side-Mount Auxiliary Contacts
1
2
Overload Relays
Disassembly
Mechanical
interlock
2-Speed Controllers
Assembly