Specifiers Guide Chapter 9 60868 Catalog
60868-Catalog 60868-Catalog 60868-Catalog Batch8 unilog cesco-content
130721-Catalog 130721-Catalog 130721-Catalog Batch9 unilog cesco-content
2014-09-27
: Pdf 60868-Catalog 60868-Catalog 783510 Batch8 unilog
Open the PDF directly: View PDF
.
Page Count: 50

894
Networking: Wall-Mount Cabinets
Wall-Mount Cabinets Product Selection Guide
PH (763) 422-2661 • FX (763) 422-2588 • homanonline.com
Subject to change without notice © 2011 Pentair Technical Products
Wall-Mount Ca binets
Wall-Mount Ca binets Pro duct Selec tion Guid e
Wall-Mount Cabinets Product Selection Guide
1
Subject to change without notice PH 763 422 2211 • FX 763 422 2600 • homanonline.com © 2009 Homan Enclosures Inc.
Networking: Wall-Mount Cabinets
Wall-Mount Cabinets Product Selection Guide
Spec-00449 C
Wall-Mount Cabinets Product Selection Guide
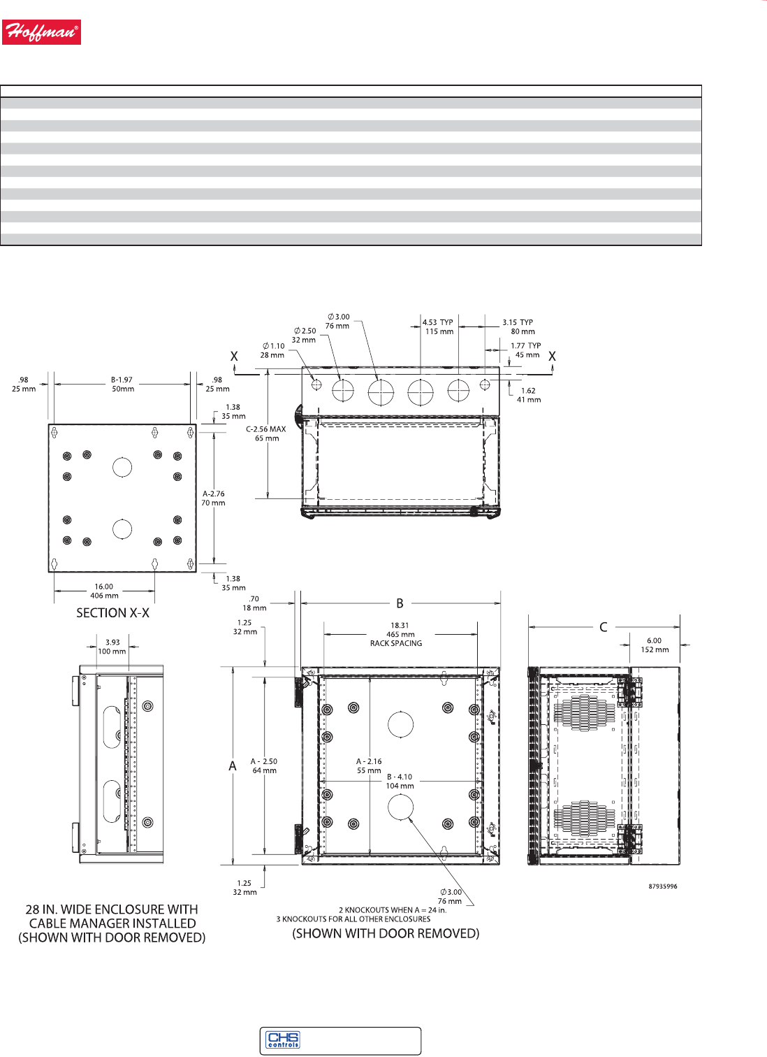
Wall-Mount FaMily ACCESSPLUS® II PROTEK®PROTEK® DOUBLEHINGED
Description ACCESSPLUS® II Double-Hinged Wall-
Mount provides both security and acces-
sibility. Designed to hold multiple pieces of
voice data equipment. Perfect where space
is at a premium.
• Double–hinged wall mount
PROTEK® Wall-Mount Cabinets are ideal
for protecting network equipment beyond
typical Type 1 enclosures.
• Harsh environments
• Models with A/C units
Oers the exibility and accessibility of a
double-hinged wall-mount and the envi-
ronmental protection of the PROTEK Type
4/12 ratings.
• Double-hinged wall-mount
• Harsh environments
• Models with A/C units
Construction Mild steel Mild steel Mild steel
Application Rating Indoors with built-in ventilation areas Indoors and outdoors.
Protects from dust, dirt and splashing
water.
Protects from dust, dirt and splashing
water.
DiMensions
Rack Units (RU) Range 12–39 RUs 12–26 RUs 7–26 RUs
Height 25.00–72.00 in. 24.00–48.00 in. 16.00–48.00 in.
Width 24.00 in., 28.00 in. 24.00 in. 24.00 in.
Depth 18.00–25.00 in. 12.00–24.00 in. 15.00–25.00 in.
Ratings
Loading - Static 250–500 lbs. 100–200 lbs. 100–175 lbs.
Certications and Listings UL 508A, CSA, NEMA, IEC UL 508A, CSA, NEMA, IEC UL 508A, CSA, NEMA, IEC
Type / NEMA / IP Rating Type 1, IP40 Type 1, 4, 12, IP55/IP66 Type 1, 4, 12, IP55/IP66
Plenum Rated Yes Yes Yes
stRuctuRe
Front Door Window or solid Window or solid Window or solid
Back Keyhole mounting slots, accessory raised
pads, cable tie-down points, large cable
knock-out
Rear mounting studs, panel-ready
and wall-mounting provisions
Rear mounting studs, panel-ready
and wall-mounting provisions
Top / Bottom Gland Plate/Cable knock-outs, fan-ready Solid sheet steel construction Solid sheet steel construction
Sides Cable knock-outs, fan-ready Solid sheet steel construction Solid sheet steel construction
Rack Angles 1 set tapped 10-32 fully adjustable, plated 1 set tapped 10-32 fully adjustable, plated 1 set tapped 10-32 fully adjustable, plated
applications
Most frequently utilized model for mount-
ing network equipment. Gland-plate oer-
ing great for retrot applications.
Ideal for remote areas with harsh environ-
ments for network equipment. Extra-deep
to accommodate rack equipment.
Ideal for remote areas with harsh environ-
ments for network equipment. Extra-deep
to accommodate rack equipment.
Unique Features • Single person mounting
• Latch-free sides permit ush-mounting to
adjacent equipment, enclosures and walls
• Safety glass window units
• Pole mounting kit available
• Reversible hinges (left/right)
• Grounding and bonding provisions
• Available with T4 A/C units
• Extra-deep sizes
• Fully vented with foam-in-place
gasket
• Safety Glass
• Rack angle standard
• Grounding and bonding provisions
• Available with T4 A/C units
• Extra deep sizes
• Fully vented with foam-in-place
gasket
• Safety Glass
• Rack Angle Standard
• Front and Rear Access
• Grounding and bonding provisions
Spec-00449.indd 1 10/07/09 9:48:09 AM
CHS Controls AB
Tel +46 42 38 61 00, Fax +46 42 38 61 29
chs@chscontrols.se www.chscontrols.se

895
Networking: Wall-Mount Cabinets
Wall-Mount Cabinets Product Selection Guide
PH (763) 422-2661 • FX (763) 422-2588 • homanonline.com
Subject to change without notice © 2011 Pentair Technical Products
2Subject to change without notice PH 763 422 2211 • FX 763 422 2600 • homanonline.com © 2009 Homan Enclosures Inc.
Networking: Wall-Mount Cabinets
Wall-Mount Cabinets Product Selection Guide
Spec-00449 C
LBOX®DBOX™ WIFI ENCLOSURE2 MODELS COMLINE®
L-BOX® provides convenient mounting and
storage for patch panels in a space-saving
design.
• Horizontal cable distribution
• Copper to ber
• Consolidation points
• Vertical rack angles
D-BOX™ provides convenient mounting
and storage for patch panels.
• Horizontal cable distribution
• Copper to ber
• Consolidation points
• Fixed and rotating rack angles
Provides a secure enclosure for WiFi and
other network equipment. Fiberglass does
not impede WiFi/WLAN signals.
• Corrosion resistant
• Plenum rated
• Plywood back panel provided
Lightweight, corrosion-resistant aluminum
enclosure provides long-lasting protection
for electrical and network components for
both indoor and outdoor environments.
• Corrosion-resistant
• Outdoor applications (OSP)
Mild steel Mild steel Fiberglass Aluminum
Indoors with built-in ventilation areas. Indoors with built-in ventilation areas. Indoors and outdoors plus hazardous
areas. Protects from dust, dirt and splash-
ing water.
Indoors and outdoors plus hazardous
areas. Protects from dust, dirt and splash-
ing water.
6–12 RUs 4–6 RUs Not applicable for smaller model.
Optional RU for large model.
Not supplied as standard.
Optional 12–26 RUs
24.00–48.00 in. 24.00–48.00 in. 6.00–24.61 in. 11.80–59.10 in.
24.00 in. 24.00 in. 6.00–24.11 in. 11.80–35.40 in.
12.34 in. 8.34–12.34 in. 4.00–12.64 in. 5.90–11.80 in.
75 lbs. 100 lbs. 50–200 lbs. 50–200 lbs.
UL 1863/508A/60905, CSA NEMA, IEC, EIA
310-D
UL 1863/508A/60905, CSA, NEMA, IEC,
EIA 310-D UL 508A, CSA,NEMA, IEC UL 508A, CSA, NEMA, IEC
Type 1, IP40 Type 1, IP40 Type 4, 4X, 12, 13 IP66 Type 3, 3R, 4, 4X, 12, IP66
Yes Yes Yes—Solid door only Not applicable
Vented wrap-around door Solid with vents Solid or window Solid
Keyhole mounting slots, accessory raised
pads, cable tie-down points, large cable
knock-out
Keyhole mounting slots, accessory raised
pads, cable tie-down points, large cable
knock-out
Wood panel standard Rear mounting studs, panel-ready and
wall-mounting provisions
Cable knock-outs, fan-ready Cable knock-outs, fan-ready Solid berglass construction Solid aluminum construction
Cable knock-outs, fan-ready Cable knock-outs, fan-ready Solid berglass construction Solid aluminum construction
1 set tapped 10-32, plated • 1 set xed tapped 10-32, plated
• 1 set tapped 10-32, fully adjustable
Optional on largest size • Optional based on size
• 1 set tapped 10-32, fully adjustable
Vertical equipment mounting provides
horizontal cable distribution. Oers a
lower-prole installation.
Fixed and rotating rack angles for easy
equipment mounting. Oers a lower-
prole installation.
Indoors and outdoors: Great for tunnels,
marinas, outside walls and rooftops. Ideal
for wireless applications; signals pass
unimpeded through berglass.
Indoors and outdoors: Great for roof-
top, pole mount and tower mounting.
Lightweight with corrosion resistance.
• Removable door
• Quarter-turn latches with keyed lock
• Cable tie-down points
• Mounting screws provided
• Top and bottom knockouts
• Cable spool mounting
• Complete accessories—fans, shelves
and others
• Grounding and bonding provisions
• Removable and reversible door
• Quarter-turn latches with keyed
lock
• Cable tie-down points
• Mounting screws provided
• Grounding and bonding provisions
• Top and bottom knockouts
• Cable spool mounting
• Complete accessories—fans,
shelves and others
• Fiberglass is easily punched or
drilled
• Foam-in-place gasketing
• Removable door with stainless steel
hinge pins
• Window models are scratch-resistant
GE Lexan Margard
• Small model—screw cover
• Large model—key lock knob
• Solar shield provides cooler interior for
outdoor applications
• Foam-in-place gasketing
• Latching—one- and three-point
options
• Door stop
• Door options—removable and heavy-
duty continuous
• Grounding and bonding provisions
Spec-00449.indd 2 10/07/09 9:48:11 AM
CHS Controls AB
Tel +46 42 38 61 00, Fax +46 42 38 61 29
chs@chscontrols.se www.chscontrols.se

896
Networking: Wall-Mount Cabinets
ACCESSPLUS® II Double-Hinge
PH (763) 422-2661 • FX (763) 422-2588 • homanonline.com
Subject to change without notice © 2011 Pentair Technical Products
ACCESSPLUS® II Dou ble-Hin ge
ACCESSPLUS® II Double-Hinge, Type 1
Industry Standards
UL 508A; Type 1; File No. E61997
cUL Listed per CSA C22.2 No. 182.4; File No. E230874
EIA 310-D
NEMA/EEMAC Type 1
EIC 60529 IP20
Per BICSI TDMM Tenth edition, Chapter 7,
Telecommunication Enclosures (TE)
Application
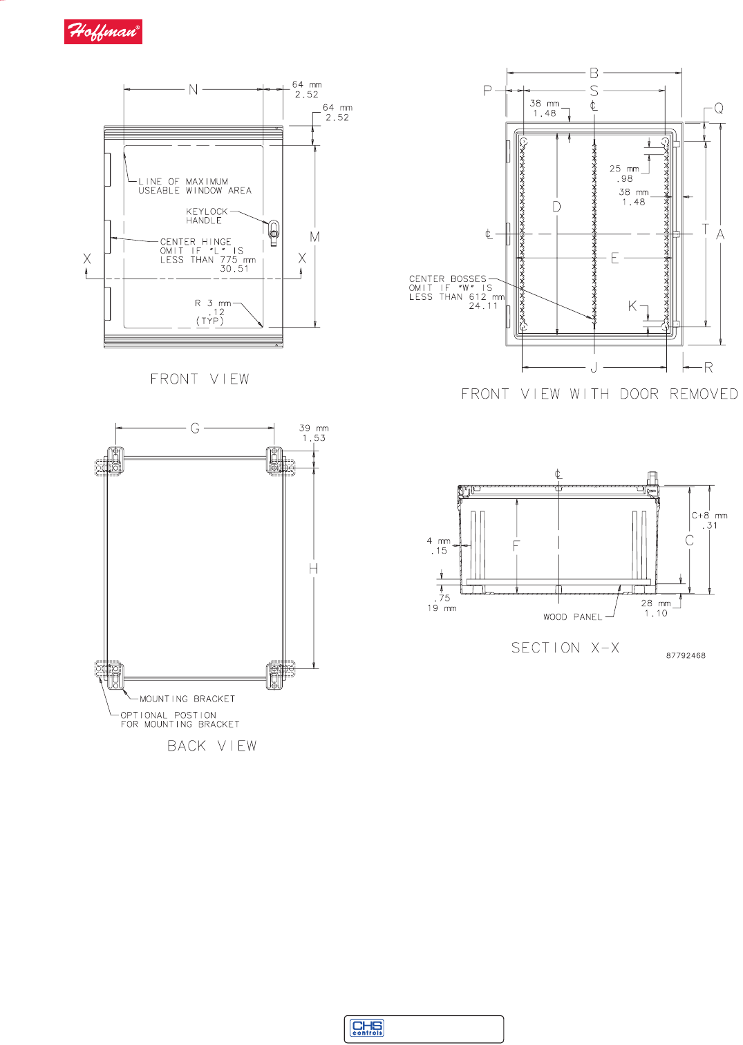
ACCESSPLUS® II Cabinets provide security, equipment access, cooling
and support for network and other 19-in. rack-mount equipment. The
cabinet has three components: front door, center section and wall
section.
Features
• Double-hinged for easy equipment access; center section provides
19-in. rack mounting per EIA universal spacing and is accessed
through the front door or swing the center section away from the
wall section for rear access
• Round corners; no sharp edges
• Front door has either a solid steel or hardened, tinted safety-glass
window door for superior scratch resistance
• Center section easily removed from rear section; tool-less one-
person installation possible
• Self-grounding, plated steel rack angles fully adjustable within
center section
• Wall section provides cable entry and cable management with
knockouts or gland plates
• Gland plate model provides easy retrot and fast installation and
allows for pre-terminated cables or pre-wired patch panels; no
need to re-terminate and test
• Self-locking center-to-wall section latches in two locations
• Front access to all latches (no exposed side latches); cabinet can be
installed tightly in corners
• Vented sides provide cross ow ventilation to improve heat
dissipation
• Vertical cable manager included in 28-in.-wide models
• A full line of accessories is available
Specications
Front Door (window or solid steel)
•
Composite frame (injection molded top and bottom with extruded
composite sides)
• 140-degree opening door
• Field-reversible (left or right) hinge
• Quarter-turn key lock, two keys included
• Window door is scratch-resistant 1/4-in. tinted safety glass
• Solid door has 16 gauge steel insert with matching black nish
Center Section
• Welded 14 gauge steel
• Solid top of center sections provides protection against falling
debris
• Ventilated sides (to which fans can be added)
• Self-latching closure connects center section to wall section
• Self-alignment ramp supports center section to wall section
• Heavy duty center-to-rear section hinge with quick-release self-
retained hinge pin eases wall installation
Rack-Mounting Angles
• 12 gauge, plated steel
• EIA universal spaced 19-in. rack-mounting holes
• RU marked from bottom to top
• Tapped 10-32 holes, 20 mounting screws included
Rear Wall Section
• Welded 14 gauge steel
• Radius corners; no sharp edges
• Available with knockouts or gland plates
• Raised pads for accessory mounting
• Cable tie-down points for cable management
• Keyhole mounting holes allow wall section to be mounted over
fasteners and eases installation
• Three cable-entry grommets
Finish
Pretreated steel coated with RAL 9005 black light-textured, low-gloss
polyester powder paint. Other nishes available—contact Homan
Customer Service.
Bulletin: DWDH1
CHS Controls AB
Tel +46 42 38 61 00, Fax +46 42 38 61 29
chs@chscontrols.se www.chscontrols.se

897
Networking: Wall-Mount Cabinets
ACCESSPLUS® II Double-Hinge
PH (763) 422-2661 • FX (763) 422-2588 • homanonline.com
Subject to change without notice © 2011 Pentair Technical Products
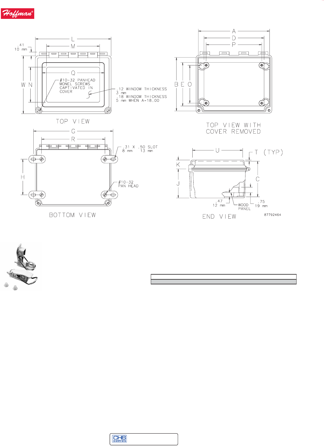
Standard Product Window Door
Catalog Number AxBxC in. AxBxC mm Rack Units Additional Rack Angles (S=Square Hole) (T=Tapped Hole)
EWMW242418 23.60 x 23.62 x 18.20 600 x 600 x 462 12 EWMR24T or EWMR24S
EWMW362418 36.02 x 23.62 x 18.20 915 x 600 x 462 19 EWMR36T or EWMR36S
EWMW482418 48.03 x 23.62 x 18.20 1220 x 600 x 462 26 EWMR48T or EWMR48S
EWMW602418 60.04 x 23.62 x 18.20 1525 x 600 x 462 32 EWMR60T or EWMR60S
EWMW722418 72.05 x 23.62 x 18.20 1830 x 600 x 462 39 EWMR72T or EWMR72S
EWMW242425 23.62 x 23.62 x 25.09 600 x 600 x 637 12 EWMR24T or EWMR24S
EWMW362425 36.02 x 23.62 x 25.09 915 x 600 x 637 19 EWMR36T or EWMR36S
EWMW482425 48.03 x 23.62 x 25.09 1220 x 600 x 637 26 EWMR48T or EWMR48S
EWMW602425 60.04 x 23.62 x 25.09 1525 x 600 x 637 32 EWMR60T or EWMR60S
EWMW722425 72.05 x 23.62 x 25.09 1830 x 600 x 637 39 EWMR72T or EWMR72S
EWMW242430 23.62 x 23.62 x 30.01 600 x 600 x 762 12 EWMR24T or EWMR24S
EWMW362430 36.02 x 23.62 x 30.01 915 x 600 x 762 19 EWMR36T or EWMR36S
EWMW482430 48.03 x 23.62 x 30.01 1220 x 600 x 762 26 EWMR48T or EWMR48S
B dimension does not include wall-to-center section hinge.
CHS Controls AB
Tel +46 42 38 61 00, Fax +46 42 38 61 29
chs@chscontrols.se www.chscontrols.se

898
Networking: Wall-Mount Cabinets
ACCESSPLUS® II Double-Hinge
PH (763) 422-2661 • FX (763) 422-2588 • homanonline.com
Subject to change without notice © 2011 Pentair Technical Products
Standard Product Solid Door
Catalog Number AxBxC in. AxBxC mm Rack Units Additional Rack Angles (S=SquareHole) (T=Tapped Hole)
EWMS242418 23.62 x 23.62 x 18.20 600 x 600 x 462 12 EWMR24T or EWMR24S
EWMS362418 36.02 x 23.62 x 18.20 915 x 600 x 462 19 EWMR36T or EWMR36S
EWMS482418 48.03 x 23.62 x 18.20 1220 x 600 x 462 26 EWMR48T or EWMR48S
EWMS242425 23.62 x 23.62 x 25.09 600 x 600 x 637 12 EWMR24T or EWMR24S
EWMS362425 36.02 x 23.62 x 25.09 915 x 600 x 637 19 EWMR36T or EWMR36S
EWMS482425 48.03 x 23.62 x 25.09 1220 x 600 x 637 26 EWMR48T or EWMR48S
B dimension does not include wall-to-center section hinge.
Standard Product Window Door with Cable Manager
Catalog Number AxBxC in. AxBxC mm Rack Units Additional Rack Angles (S=Square Hole) (T=Tapped Hole) Vertical Cable Mgr. Catalog Numbera
EWMW242825 23.62 x 27.56 x 25.09 600 x 700 x 637 12 EWMR24T or EWMR24S EWMC24
EWMW362825 36.02 x 27.56 x 25.09 915 x 700 x 637 19 EWMR36T or EWMR36S EWMC36
EWMW482825 48.03 x 27.56 x 25.09 1220 x 700 x 637 26 EWMR48T or EWMR48S EWMC48
B dimension does not include wall-to-center section hinge.
a For additional rack angles, also order vertical cable manager.
CHS Controls AB
Tel +46 42 38 61 00, Fax +46 42 38 61 29
chs@chscontrols.se www.chscontrols.se

899
Networking: Wall-Mount Cabinets
ACCESSPLUS® II Double-Hinge
PH (763) 422-2661 • FX (763) 422-2588 • homanonline.com
Subject to change without notice © 2011 Pentair Technical Products
Standard Product Window Door with Gland Plate
Catalog Number AxBxC in. AxBxC mm Rack Units Additional Rack Angles (S=Square Hole) (T=Tapped Hole)
EWMWG242418 23.62 x 23.62 x 18.20 600 x 600 x 462 12 EWMR24T or EWMR24S
EWMWG362418 36.02 x 23.62 x 18.20 915 x 600 x 462 19 EWMR36T or EWMR36S
EWMWG482418 48.03 x 23.62 x 18.20 1220 x 600 x 462 26 EWMR48T or EWMR48S
EWMWG242425 23.62 x 23.62 x 25.09 600 x 600 x 637 12 EWMR24T or EWMR24S
EWMWG362425 36.02 x 23.62 x 25.09 915 x 600 x 637 19 EWMR36T or EWMR36S
EWMWG482425 48.03 x 23.62 x 25.09 1220 x 600 x 637 26 EWMR48T or EWMR48S
B dimension does not include wall-to-center section hinge.
Load Rating
Height Load Capacity
24 in. 250 lb.
36 in. 300 lb.
48 in. 350 lb.
60 in. 400 lb.
72 in. 500 lb.
CHS Controls AB
Tel +46 42 38 61 00, Fax +46 42 38 61 29
chs@chscontrols.se www.chscontrols.se

900
Networking: Wall-Mount Cabinets
ACCESSPLUS® II Double-Hinge
PH (763) 422-2661 • FX (763) 422-2588 • homanonline.com
Subject to change without notice © 2011 Pentair Technical Products
Vertical Cable Managers for 28-in.-Wide
Cabinet
Use ACCESSPLUS Cable Managers when ordering additional rack
angles for 28-in.-wide cabinet.
Bulletin: DWDH1
Catalog Number Description Fits Cabinet
EWMC24 ACCESSPLUS Vertical Cable Manager 24.00 in. A = 24.00; B = 28.00
EWMC36 ACCESSPLUS Vertical Cable Manager 36.00 in. A = 36.00; B = 28.00
EWMC48 ACCESSPLUS Vertical Cable Manager 48.00 in. A = 48.00; B = 28.00
Vertical Cable Manager Capacity Number of cables at 60
percent lled
Cross Section (Area) 5e (0.22 in. dia.) 6 (0.28 in. dia.) 6A (0.35 in. dia.)
24.5 in.2380 300 208
Rack Angles Bulletin: DWDH1
Catalog Number Description Rack Units Fits Cabinet
EWMR24T Fits 24-in. tapped 12 A = 24.00
EWMR36T Fits 36-in. tapped 19 A = 36.00
EWMR48T Fits 48-in. tapped 26 A = 48.00
EWMR60T Fits 60-in. tapped 32 A = 60.00
EWMR72T Fits 72-in. tapped 39 A = 72.00
EWMR24S Fits 24-in. square 12 A = 24.00
EWMR36S Fits 36-in. square 19 A = 36.00
EWMR48S Fits 48-in. square 26 A = 48.00
EWMR60S Fits 60-in. square 32 A = 60.00
EWMR72S Fits 72-in. square 39 A = 72.00
Fan Kits Bulletin: DWDH1
Catalog Number Description Fits Cabinet
EWMF1 4-in. fan with plug and blocking plates,
115 VAC, 100 CFM small
Fits all C = 18.00
EWMF2 4-in. fan with plug and blocking plates,
115 VAC, 100 CFM, large
Fits all C = 25.00 or 30.00
CHS Controls AB
Tel +46 42 38 61 00, Fax +46 42 38 61 29
chs@chscontrols.se www.chscontrols.se

901
Networking: Wall-Mount Cabinets
ACCESSPLUS® II Double-Hinge
PH (763) 422-2661 • FX (763) 422-2588 • homanonline.com
Subject to change without notice © 2011 Pentair Technical Products
DataCom Wall-Mount Cabinet with Gland Plate Application
1
Networking: Wall-Mount Cabinets
ACCESSPLUS® II Double-Hinged
Spec-00554 D
Subject to change without notice PH 763 422 2661 • FX 763 422 2588 • homanonline.com © 2010 Homan Enclosures Inc.
DataCom Wall-Mount Cabinet with Gland Plate Application
This cabinet oers signicant advantages in retrot applications. The gland plate is mounted at the top and the bottom to accommodate
cable runs from above, below or both. The gland plate casing can be removed while patch panels and associated wiring are brought to the
cabinet.
2. Install the cable gland plate onto the wall section.
4. Install the center section, then mount patch panels on rack
angles.
5. Close and lock the door.
1. Once the wall section is installed on the wall, lay in the
patch panel.
3. Use wire ties or cable wraps to secure the cable to the
cabinet.
Spec-00554.indd 1 10/18/2010 1:19:45 PM
CHS Controls AB
Tel +46 42 38 61 00, Fax +46 42 38 61 29
chs@chscontrols.se www.chscontrols.se

902
Networking: Wall-Mount Cabinets
PROTEK® Wall-Mount and Double-Hinge Cabinets
PH (763) 422-2661 • FX (763) 422-2588 • homanonline.com
Subject to change without notice © 2011 Pentair Technical Products
PROTEK® Wall-M ount and Dou ble-Hi nge Cabinet s
PROTEK®, Single-Door UL and NEMA Type 4 or 12
Industry Standards
UL 508A Listed; Type 4 or 12; File Number E619967
cUL Listed per CSA C22.2 No. 94; Type 4 or 12; File Number
E61997
NEMA/EEMAC Type 4 or 12
IEC 60529, IP66 or IP55
Application
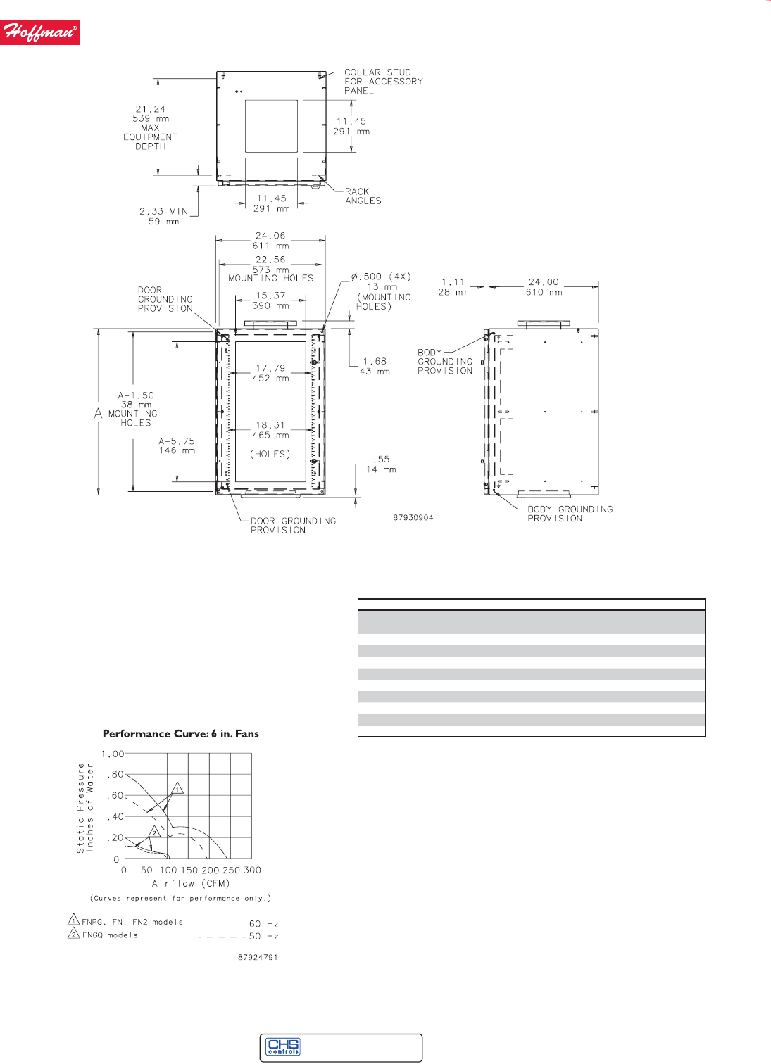
PROTEK® Cabinets are an excellent, o-the-shelf choice for mounting
19-in. rack network equipment in wet or dirty environments where
oor space is at a premium. Solid or safety glass window door models
provide application exibility.
Features
• Solid door provides complete physical and visual protection
• Window door, made with scratch-resistant safety glass, provides
equipment monitoring without opening the door to minimize
contamination
• Fully welded and ground body and door construction for long-
term good appearance and durability
• Foam-in-place seamless gasket around door seals against outdoor
air inltration; is non-absorbing and chemical resistant
• Type 12 cabinets have solid or window doors and a locking wing
knob with two keys. They provide security and convenience in
indoor applications.
• Type 4 cabinets have solid doors and a padlock-capable quarter-
turn latch. They provide easy operation and locking options in
indoor and outdoor applications.
• One set of adjustable, tapped rack angles included
• Optional square-hole (.375 in.) rack angles available for equipment
mounting exibility
• Rack angles are plated and self-grounding for durability and safety
• Collar studs provided on back of cabinet for mounting accessory
panels
• Accessory panels for mounting additional accessories at the back
of the cabinet include tie-down points and pre-drilled holes
• Plenum rated for use in air exchange areas
Specications
• Doors and body made of 14 gauge steel
• Convenient studs provided on both door and body for bonding
and grounding
• Rack angles tapped 10-32 per EIA standards; made of 12 gauge
self-grounding plated steel
• Window is clear, .25-in. thick, scratch- and impact-resistant safety
glass
• Optional polycarbonate window (not plenum rated) can be eld-
or factory-installed. Contact Homan Customer Service for factory
installation.
• Twenty 10-32 screws included
Finish
Pretreated steel coated with RAL 7035 light-gray or RAL 9005
black textured, low-gloss polyester powder paint. Other nishes
available—contact Homan Customer Service.
Bulletin: DWS12
Standard Product Window Door, NEMA 12, IP55
Catalog Number AxBxC in./mm Finish
Rack
Units
Standard
Panel
Accessory
Panel
Additional Optional
Rack Angles
(Tapped Holes)
Additional Optional
Rack Angles
(Square Holes)
PTDW242412B 24.00 x 24.00 x 12.00
610 x 610 x 305
Black 12 CP2424 PTP2424A PTRA1924TPL PTRA1924THL
PTDW242412G 24.00 x 24.00 x 12.00
610 x 610 x 305
Gray 12 CP2424 PTP2424A PTRA1924TPL PTRA1924THL
PTDW362412B 36.50 x 24.00 x 12.00
927 x 610 x 305
Black 19 CP3624 PTP3624A PTRA1936TPL PTRA1936THL
PTDW362412G 36.50 x 24.00 x 12.00
927 x 610 x 305
Gray 19 CP3624 PTP3624A PTRA1936TPL PTRA1936THL
PTDW482412B 48.50 x 24.00 x 12.00
1232 x 610 x 305
Black 26 CP4824 PTP4824A PTRA1948TPL PTRA1948THL
PTDW482412G 48.50 x 24.00 x 12.00
1232 x 610 x 305
Gray 26 CP4824 PTP4824A PTRA1948TPL PTRA1948THL
PTDW242424B 24.00 x 24.00 x 24.00
610 x 610 x 610
Black 12 CP2424 PTP2424A PTRA1924TPL PTRA1924THL
PTDW242424G 24.00 x 24.00 x 24.00
610 x 610 x 610
Gray 12 CP2424 PTP2424A PTRA1924TPL PTRA1924THL
PTDW362424B 36.50 x 24.00 x 24.00
927 x 610 x 610
Black 19 CP3624 PTP3624A PTRA1936TPL PTRA1936THL
PTDW362424G 36.50 x 24.00 x 24.00
927 x 610 x 610
Gray 19 CP3624 PTP3624A PTRA1936TPL PTRA1936THL
PTDW482424B 48.50 x 24.00 x 24.00
1232 x 610 x 610
Black 26 CP4824 PTP4824A PTRA1948TPL PTRA1948THL
PTDW482424G 48.50 x 24.00 x 24.00
1232 x 610 x 610
Gray 26 CP4824 PTP4824A PTRA1948TPL PTRA1948THL
CHS Controls AB
Tel +46 42 38 61 00, Fax +46 42 38 61 29
chs@chscontrols.se www.chscontrols.se

903
Networking: Wall-Mount Cabinets
PROTEK® Wall-Mount and Double-Hinge Cabinets
PH (763) 422-2661 • FX (763) 422-2588 • homanonline.com
Subject to change without notice © 2011 Pentair Technical Products
Standard Product Solid Door, NEMA 4, IP66
Catalog Number AxBxC in./mm Finish
Rack
Units
Standard
Panel
Accessory
Panel
Additional Optional
Rack Angles
(Tapped Holes)
Additional Optional
Rack Angles
(Square Holes)
PTDS242412G4 24.00 x 24.00 x 12.00
610 x 610 x 305
Gray 12 CP2424 PTP2424A PTRA1924TPL PTRA1924THL
PTDS362412G4 36.50 x 24.00 x 12.00
927 x 610 x 305
Gray 19 CP3624 PTP3624A PTRA1936TPL PTRA1936THL
PTDS482412G4 48.50 x 24.00 x 12.00
1232 x 610 x 305
Gray 26 CP4824 PTP4824A PTRA1948TPL PTRA1948THL
PTDS242424G4 24.00 x 24.00 x 24.00
610 x 610 x 610
Gray 12 CP2424 PTP2424A PTRA1924TPL PTRA1924THL
PTDS362424G4 36.50 x 24.00 x 24.00
927 x 610 x 610
Gray 19 CP3624 PTP3624A PTRA1936TPL PTRA1936THL
PTDS482424G4 48.50 x 24.00 x 24.00
1232 x 610 x 610
Gray 26 CP4824 PTP4824A PTRA1948TPL PTRA1948THL
Standard Product Solid Door, NEMA 12, IP55
Catalog Number AxBxC in./mm
Rack
Units
Standard
Panel
Accessory
Panel
Additional Optional
Rack Angles
(Tapped Holes)
Additional Optional
Rack Angles
(Square Holes)
PTDS242412B 24.00 x 24.00 x 12.00
610 x 610 x 305
12 CP2424 PTP2424A PTRA1924TPL PTRA1924THL
PTDS242412G 24.00 x 24.00 x 12.00
610 x 610 x 305
12 CP2424 PTP2424A PTRA1924TPL PTRA1924THL
PTDS362412B 36.50 x 24.00 x 12.00
92700 x 610 x 305
19 CP3624 PTP3624A PTRA1936TPL PTRA1936THL
PTDS362412G 36.50 x 24.00 x 12.00
927 x 610 x 305
19 CP3624 PTP3624A PTRA1936TPL PTRA1936THL
PTDS482412B 48.50 x 24.00 x 12.00
1232 x 610 x 305
26 CP4824 PTP4824A PTRA1948TPL PTRA1948THL
PTDS482412G 48.50 x 24.00 x 12.00
1232 x 610 x 305
26 CP4824 PTP4824A PTRA1948TPL PTRA1948THL
PTDS242424B 24.00 x 24.00 x 24.00
610 x 610 x 610
12 CP2424 PTP2424A PTRA1924TPL PTRA1924THL
PTDS242424G 24.00 x 24.00 x 24.00
610 x 610 x 610
12 CP2424 PTP2424A PTRA1924TPL PTRA1924THL
PTDS362424B 36.50 x 24.00 x 24.00
927 x 610 x 610
19 CP3624 PTP3624A PTRA1936TPL PTRA1936THL
PTDS362424G 36.50 x 24.00 x 24.00
927 x 610 x 610
19 CP3624 PTP3624A PTRA1936TPL PTRA1936THL
PTDS482424B 48.50 x 24.00 x 24.00
1232 x 610 x 610
26 CP4824 PTP4824A PTRA1948TPL PTRA1948THL
PTDS482424G 48.50 x 24.00 x 24.00
1232 x 610 x 610
26 CP4824 PTP4824A PTRA1948TPL PTRA1948THL
CHS Controls AB
Tel +46 42 38 61 00, Fax +46 42 38 61 29
chs@chscontrols.se www.chscontrols.se

904
Networking: Wall-Mount Cabinets
PROTEK® Wall-Mount and Double-Hinge Cabinets
PH (763) 422-2661 • FX (763) 422-2588 • homanonline.com
Subject to change without notice © 2011 Pentair Technical Products
PROTEK® Single-Door Fan and Filter Thermal Packages, UL and NEMA Type 1
Industry Standards
UL 508A Listed; Type 1; File Number E619967
cUL Listed per CSA C22.2 No. 94; Type 1; File Number E61997
NEMA / EEMAC: Type 1
IEC 60529, IP 30
Application
PROTEK® Fan and Filter Packages are ideal for protecting sensitive 19-
in. rack equipment from harmful environmental contaminants such
as falling dirt, dust and dripping water. Use where the ambient air can
be used to cool the internal equipment and where protection from
falling dirt and dripping water is needed. Filters assist in removing
contaminants and are easily removed for periodic cleaning without
accessing the cabinet. Top-mounted fans provide increased airow
and maximize heat dissipation of internally mounted equipment.
Both top-mounted fans and bottom-mounted intake lters are
positioned away from 19-in. rack-mounting areas.
Features
• Solid door provides complete physical and visual protection
• Window door, made with scratch-resistant safety glass, provides
equipment monitoring without opening the door to minimize
contamination
• Fully welded and ground body and door construction for long-
term good appearance and durability
• Foam-in-place seamless gasket around door seals against outdoor
air inltration; is non-absorbing and chemically resistant
• Type 12 cabinets have window doors and a locking wing knob
with two keys. They provide security and convenience in indoor
applications.
• Type 4 cabinets have solid doors and a padlock-capable, tamper-
resistant, quarter-turn latch (tool included). They provide easy
operation and locking options in indoor and outdoor applications.
• One set of adjustable tapped rack angles included
•
Optional square-hole (.375-in.) rack angles available for equipment
mounting exibility
• Rack angles are plated and self-grounding for durability and safety
• Collar studs provided on back of cabinet for mounting accessory
panels
• Accessory panels for mounting additional accessories at the back
of the cabinet include tie-down points and pre-drilled holes
• Plenum rated for use in air exchange areas
Specications
• Doors made of 16 gauge steel; body made of 14 gauge steel
• Convenient studs provided on both door and body for bonding
and grounding
• Rack angles tapped 10-32 per EIA standards; made of 12 gauge
self-grounding plated steel
• Window is clear, .25-in. thick, scratch- and impact-resistant safety
glass
• Optional polycarbonate window (not plenum rated) can be eld-
or factory-installed. Contact Homan Customer Service for factory
installation.
• Twenty 10-32 screws included
• Pagoda top-mounted 6-in. fan and bottom-mounted 10-in. lter
inlet
• Top shroud protects cabinet and fan from falling debris and
dripping water
• Bottom-mounted air inlet with outside removable and cleanable
lter
• Regular lter cleaning required for optimum thermal performance
• Operates on 110/115 VAC 50/60 Hz line voltage
• Standard NEMA 15 A plug internal to the cabinet (5-15P)
Finish
Pretreated steel coated with RAL 7035 light gray textured, low-gloss
polyester powder paint. Other paint nishes available—contact
Homan Customer Service for details.
Load Rating
WARNING: The cabinet must be safely and correctly mounted to the
wall to support the total weight of the cabinet and its contents. Due
to various applications and wall constructions, consultation with a
structural engineer and analysis of the mounting wall is advised.
Bulletin: DWS12
Standard Product PROTEK Single Window Door UL Type 1 Fan and Filter Packages
Catalog Number AxBxC in. AxBxC mm
Rack
Units
Accessory
Panels
Standard
Panels
Additional Optional
Rack Angles
(Tapped Holes)
Additional Optional
Rack Angles
(Square Holes)
PTDW242424GF 24.00 x 24.00 x 24.00 610 x 610 x 610 12 PTP2424A CP2424 PTRA1924TPL PTRA1924THL
PTDW362424GF 36.50 x 24.00 x 24.00 927 x 610 x 610 19 PTP3624A CP3624 PTRA1936TPL PTRA1936THL
PTDW482424GF 48.50 x 24.00 x 24.00 1232 x 610 x 610 26 PTP4824A CP4824 PTRA1948TPL PTRA1948THL
Technical Operating Information Fan Unit (6-in. Fan with Cord) Replacement Filter No. AFLTR10
Hz Voltage VAC CFM W @ 50/60 Hz Full Load Amp @ 50/60 Hz Noise SIL (db)
50/60 115 200/240 36/32 .45/.36 50/56
CHS Controls AB
Tel +46 42 38 61 00, Fax +46 42 38 61 29
chs@chscontrols.se www.chscontrols.se

905
Networking: Wall-Mount Cabinets
PROTEK® Wall-Mount and Double-Hinge Cabinets
PH (763) 422-2661 • FX (763) 422-2588 • homanonline.com
Subject to change without notice © 2011 Pentair Technical Products
Thermal Performance for Fan and Filter
Packages
PROTEK Fan and Filter Packages calculated thermal performance
Max. Internal Temperature: 100 F
Voltage / Hertz: 115 VAC/60 Hz
Filters: Clean (Regular cleaning required to maintain airow)
Air Volume: 200 CFM (Exact CFM dependant on Voltage, Frequency,
and lter eciency)
Max. Elevation: 6,000 ft. (Contact Homan for elevations above
6,000 ft.)
Thermal Performance PROTEK® Fan and Filter Packages
Ambient Temperature (°F) Watts (Heat) Dissipated
100 or above Not recommended
Consider PROTEK Air Conditioner Package
95 316
90 632
85 948
80 1264
75 1580
70 1896
65 2212
60 2528
55 2844
Watts = .316 x CFM x delta T (degrees F) (at sea level)
Delta T = Max internal temperature (degrees F) – Ambient external temperature (degrees F)
Ambient temperature is the air temperature in and around the intake opening of the cabinet. Fan cooling can
never cool the equipment below ambient temperature.
CHS Controls AB
Tel +46 42 38 61 00, Fax +46 42 38 61 29
chs@chscontrols.se www.chscontrols.se

906
Networking: Wall-Mount Cabinets
PROTEK® Wall-Mount and Double-Hinge Cabinets
PH (763) 422-2661 • FX (763) 422-2588 • homanonline.com
Subject to change without notice © 2011 Pentair Technical Products
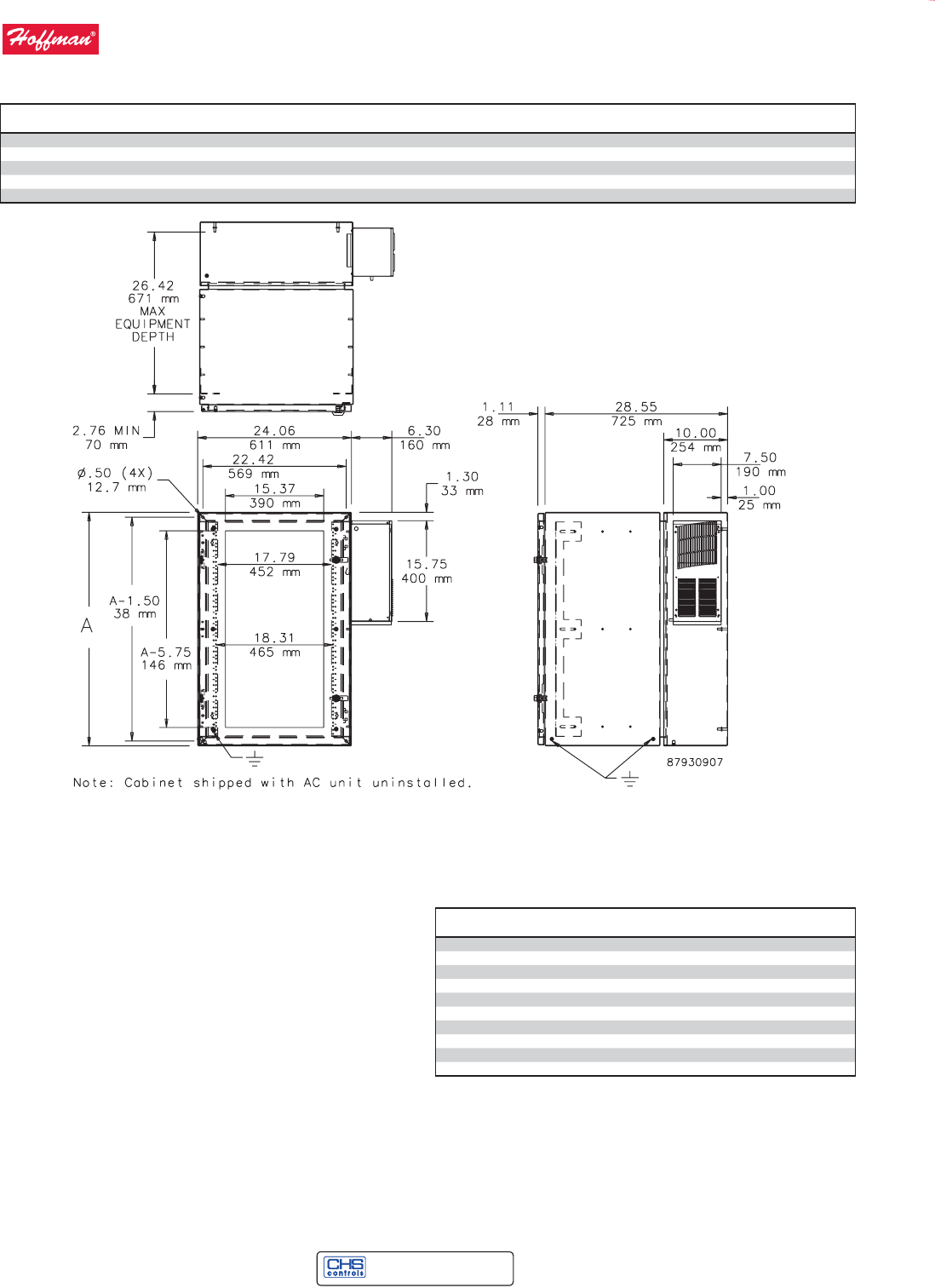
PROTEK® Single-Door Thermal AC Package, UL and NEMA Type 4 or 12
Industry Standards
PROTEK Air Conditioner Packages Indoor (Type 12)
UL 508A Listed; Type 12; File Number E619967
cUL Listed per CSA C22.2 No. 94; Type 12; File Number E61997
NEMA / EEMAC: Type 12
IEC 60529, IP 55
PROTEK Air Conditioner Packages Outdoor (Type 4)
UL 508A Listed; Type 12, 4; File Number E619967
cUL Listed per CSA C22.2 No. 94; Type 12, 4; File Number E61997
NEMA / EEMAC: Type 12, 4
IEC 60529, IP 66
Application
The PROTEK® Thermal Package is an excellent, o-the-shelf choice
for mounting 19-in. rack network equipment in wet or dirty
environments where ltration or air conditioning is required and oor
space is at a premium. Complete Fan and Filter and Air Conditioner
Packages are available to match application requirements.
Features
• Solid door provides complete physical and visual protection
• Window door, made with scratch-resistant safety glass, provides
equipment monitoring without opening the door to minimize
contamination
• Fully welded and ground body and door construction for long-
term good appearance and durability
• Foam-in-place seamless gasket around door seals against outdoor
air inltration; is non-absorbing and chemically resistant
• Type 12 cabinets have window doors and a locking wing knob
with two keys. They provide security and convenience in indoor
applications.
• Type 4 cabinets have solid doors and a padlock-capable, tamper-
resistant, quarter-turn latch (tool included). They provide easy
operation and locking options in indoor and outdoor applications.
• One set of adjustable tapped rack angles included
•
Optional square-hole (.375-in.) rack angles available for equipment
mounting exibility
• Rack angles are plated and self-grounding for durability and safety
• Collar studs provided on back of cabinet for mounting accessory
panels
• Accessory panels for mounting additional accessories at the back
of the cabinet include tie-down points and pre-drilled holes
• Plenum rated for use in air exchange areas
• Cabinet shipped with air conditioner uninstalled
Specications
• Doors made of 16 gauge steel; body made of 14 gauge steel
• Convenient studs provided on both door and body for bonding
and grounding
• Rack angles tapped 10-32 per EIA standards; made of 12 gauge
self-grounding plated steel
• Window is clear, .25-in. thick, scratch- and impact-resistant safety
glass
• Optional polycarbonate window (not plenum rated) can be eld-
or factory-installed. Contact Homan Customer Service for factory
installation.
• Twenty 10-32 screws included
• Right-side-mounted T4 Line Indoor/Outdoor Air Conditioner
• Operates on 110/115 VAC 50/60 Hz line voltage
• Standard NEMA 15 A plug internal to the cabinet (5-15P)
• See table for technical operating information
• Routine maintenance required for optimum performance (see
service manual)
Finish
Pretreated steel coated with RAL 7035 light gray textured, low-gloss
polyester powder paint. Other paint nishes available—contact
Homan Customer Service for details.
Load Rating
WARNING: The cabinet must be safely and correctly mounted to the
wall to support the total weight of the cabinet and its contents. Due
to various applications and wall constructions, consultation with a
structural engineer and analysis of the mounting wall is advised.
Bulletin: DWS12
Standard Product Single Window-Door UL Type 12 Air Conditioner Packages
Catalog Number AxBxC in. AxBxC mm
Rack
Units
Accessory
Panels
Standard
Panel
Additional Optional
Rack Angles
(Tapped Holes)
Additional Optional
Rack Angles
(Square Holes)
PTDW242424GA 24.00 x 24.00 x 24.00 610 x 610 x 610 12 PTP2424A CP2424 PTRA1924TPL PTRA1924THL
PTDW362424GA 36.50 x 24.00 x 24.00 927 x 610 x 610 19 PTP3624A CP3624 PTRA1936TPL PTRA1936THL
PTDW482424GA 48.50 x 24.00 x 24.00 1232 x 610 x 610 26 PTP4824A CP4824 PTRA1948TPL PTRA1948THL
Standard Product Single Solid-Door UL Type 4 Air Conditioner Packages
Catalog Number AxBxC in. AxBxC mm
Rack
Units
Accessory
Panels
Standard
Panel
Additional Optional
Rack Angles
(Tapped Holes)
Additional Optional
Rack Angles
(Square Holes)
PTDS242424GA4 24.00 x 24.00 x 24.00 610 x 610 x 610 12 PTP2424A CP2424 PTRA1924TPL PTRA1924THL
PTDS362424GA4 36.50 x 24.00 x 24.00 927 x 610 x 610 19 PTP3624A CP3624 PTRA1936TPL PTRA1936THL
PTDS482424GA4 48.50 x 24.00 x 24.00 1232 x 610 x 610 26 PTP4824A CP4824 PTRA1948TPL PTRA1948THL
Technical Operating Information AC Unit (T150116G100) Replacement Filter No. 10100091
Hz Voltage VAC Phase BTU/Hr @ Max. Amb. Temp. (E) Full Load Amp Max. Amb. Temp. (ºF) Max. Amb. Temp. (ºC) Cord and Plug
60 (50) 110 - 115 1 800 (235 watts) 3.6 (3.8) 131 (125) 52 (52) 24-in. cord length 5-15PPlug
CHS Controls AB
Tel +46 42 38 61 00, Fax +46 42 38 61 29
chs@chscontrols.se www.chscontrols.se

907
Networking: Wall-Mount Cabinets
PROTEK® Wall-Mount and Double-Hinge Cabinets
PH (763) 422-2661 • FX (763) 422-2588 • homanonline.com
Subject to change without notice © 2011 Pentair Technical Products
Thermal Performance for Air Conditioner
Packages
PROTEK Air Conditioner calculated thermal performance
AC Performance:
800 BTU/hour or 235 watts
Voltage / Hertz:
115 VAC/60 Hz
Max. Ambient Temperature:
131 F
Min. Ambient Temperature: -40 F
Max. Internal Temperature: 100 F (Allowable)
Thermal Performance PROTEK® Air Conditioner Packages
Ambient
Temperature (°F)
Watts (Heat) Dissipated
Cabinet Height: 24 in.
Watts (Heat) Dissipated
Cabinet Height: 36 in.
Watts (Heat) Dissipated
Cabinet Height: 48 in.
130 15 N/A N/A
120 88 73 59
110 161 154 146
100 234 234 234
90 308 315 322
80 381 396 410
70 454 476 498
60 527 557 586
50 601 637 674
40 674 718 762
N/A = Not applicable and not recommended in these applications
1 BTU = 3.413 watts
CHS Controls AB
Tel +46 42 38 61 00, Fax +46 42 38 61 29
chs@chscontrols.se www.chscontrols.se

908
Networking: Wall-Mount Cabinets
PROTEK® Wall-Mount and Double-Hinge Cabinets
PH (763) 422-2661 • FX (763) 422-2588 • homanonline.com
Subject to change without notice © 2011 Pentair Technical Products
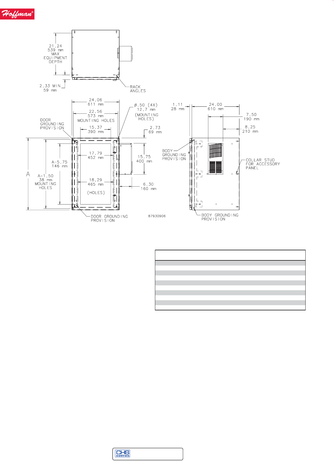
PROTEK® DH Double-Hinge, UL and NEMA Type 4 or 12
Self-Closing Latch Type 4 Enclosures
Industry Standards
UL 508A Listed; Type 4 or 12; File Number E619967
cUL Listed per CSA C22.2 No. 94; Type 4 or 12; File Number
E61997
NEMA/EEMAC: Type 4 or 12
IEC 60529, IP66 or IP55
Application
PROTEK® DH Cabinets protect equipment in wet or dirty
environments and can be pole- or wall-mounted. Available with
reversible left or right hinging, the cabinet swings open to provide
easy equipment service and installation access.
Features
• Type 12 cabinets available with solid or window doors and have
a locking wing knob with two keys. They provide security and
convenience in indoor applications.
• Type 4 cabinets have solid doors and a padlock-capable quarter-
turn latch. They provide easy operation and locking options in
indoor and outdoor applications.
• Solid door provides complete physical and visual protection
• Window door, made with scratch resistant safety glass, allows
equipment monitoring without opening the door to minimize
contamination
• Double-hinged for easy equipment access
• Front access to center body hinging and back section latches
• Exclusive toolless self-fastening latch is easy to open, yet
automatically closes securely
• Latch on front of door eliminates need to access sides to open door
or back section latches
• Latch-free sides permit side of cabinet to be installed tightly into a
corner
• Fully welded and ground body and door construction for long-
term good appearance and durability
• Foam-in-place seamless gasket around door seals against outdoor
air inltration; is non-absorbing and chemical resistant
• One set of adjustable tapped rack angles included
• Optional square hole rack angles available for equipment
mounting exibility
• Rack angles are plated and self-grounding for durability and safety
• Collar studs provided on back of cabinet for mounting accessory
panels
• Accessory panels for mounting additional accessories at the back
of the cabinet include tie-down points and pre-drilled holes
• Plenum rated for use in air exchange areas
• Available modications include paint colors, holes and cutouts,
and custom sizes
Specications
• Doors and body made of 14 gauge steel
• Convenient studs provided on center section for bonding and
grounding
• Rack angles tapped 10-32 per EIA standards; made of 12 gauge
self-grounding plated steel
• Window is clear, .25 in. thick, scratch and impact resistant safety
glass
• Optional polycarbonate window (not plenum rated) can be eld-
or factory-installed. Contact Homan Customer Service for factory
installation.
• Twenty 10-32 screws included
Finish
Pretreated steel coated with RAL 7035 light gray textured, low gloss
polyester powder paint. Other nishes available – contact Homan
Customer Service.
Load Rating
HEIGHT RATING
16.00 (in.) 100 lb. (45.4 kg)
20.00 (in.) 100 lb. (45.4 kg)
24.00 (in.) 100 lb. (45.4 kg)
36.00 (in.) 125 lb. (56.7 kg)
48.00 (in.) 175 lb. (79.4 kg)
Options
See the appropriate option for more information. Options include:
PROTEK® DH Type 1, 4 or 12 Double-Hinged Wall-Mount Cabinet
Accessory Panels
PROTEK® Polycarbonate Window Inserts
PROTEK® Rack Angles
Bulletin: DWS12
CHS Controls AB
Tel +46 42 38 61 00, Fax +46 42 38 61 29
chs@chscontrols.se www.chscontrols.se

909
Networking: Wall-Mount Cabinets
PROTEK® Wall-Mount and Double-Hinge Cabinets
PH (763) 422-2661 • FX (763) 422-2588 • homanonline.com
Subject to change without notice © 2011 Pentair Technical Products
Standard Product
Catalog Number AxBxC in. AxBxC mm Rack Units Door Style UL/NEMA Type IP Rating Accessory Panel Standard Panel
Additional Optional
Rack Angles
(Tapped Holes)
Additional Optional
Rack Angles
(Square Holes)
PTDHS162415G4 16.00 x 24.00 x 15.00 406 x 610 x 381 8 Solid 4 IP66 PTPDH1624A A24P16 PTRA1916TPL PTRA1916THL
PTDHS162415G 16.00 x 24.00 x 15.00 406 x 610 x 381 8 Solid 12 IP55 PTPDH1624A A24P16 PTRA1916TPL PTRA1916THL
PTDHW162415G 16.00 x 24.00 x 15.00 406 x 610 x 381 8 Window 12 IP55 PTPDH1624A A24P16 PTRA1916TPL PTRA1916THL
PTDHS202415G4 20.00 x 24.00 x 15.00 508 x 610 x 381 10 Solid 4 IP66 PTPDH2024A A24P20 PTRA1920TPL PTRA1924THL
PTDHS202415G 20.00 x 24.00 x 15.00 508 x 610 x 381 10 Solid 12 IP55 PTPDH2024A A24P20 PTRA1920TPL PTRA1924THL
PTDHW202415G 20.00 x 24.00 x 15.00 508 x 610 x 381 10 Window 12 IP55 PTPDH2024A A24P20 PTRA1920TPL PTRA1924THL
PTDHS242415G4 24.00 x 24.00 x 15.00 610 x 610 x 381 12 Solid 4 IP66 PTPDH2424A A24P24 PTRA1924TPL PTRA1924THL
PTDHS242415G 24.00 x 24.00 x 15.00 610 x 610 x 381 12 Solid 12 IP55 PTPDH2424A A24P24 PTRA1924TPL PTRA1924THL
PTDHW242415G 24.00 x 24.00 x 15.00 610 x 610 x 381 12 Window 12 IP55 PTPDH2424A A24P24 PTRA1924TPL PTRA1924THL
PTDHS362415G4 36.50 x 24.00 x 15.00 927 x 610 x 381 19 Solid 4 IP66 PTPDH3624A A36P24 PTRA1936TPL PTRA1936THL
PTDHS362415G 36.50 x 24.00 x 15.00 927 x 610 x 381 19 Solid 12 IP55 PTPDH3624A A36P24 PTRA1936TPL PTRA1936THL
PTDHW362415G 36.50 x 24.00 x 15.00 927 x 610 x 381 19 Window 12 IP55 PTPDH3624A A36P24 PTRA1936TPL PTRA1936THL
PTDHS482415G4 48.50 x 24.00 x 15.00 1232 x 610 x 381 26 Solid 4 IP66 PTPDH4824A A48P24 PTRA1948TPL PTRA1948THL
PTDHS482415G 48.50 x 24.00 x 15.00 1232 x 610 x 381 26 Solid 12 IP55 PTPDH4824A A48P24 PTRA1948TPL PTRA1948THL
PTDHW482415G 48.50 x 24.00 x 15.00 1232 x 610 x 381 26 Window 12 IP55 PTPDH4824A A48P24 PTRA1948TPL PTRA1948THL
PTDHS242424G4 24.00 x 24.00 x 24.00 610 x 610 x 610 12 Solid 4 IP66 PTPDH2424A A24P24 PTRA1924TPL PTRA1924THL
PTDHS242424G 24.00 x 24.00 x 24.00 610 x 610 x 610 12 Solid 12 IP55 PTPDH2424A A24P24 PTRA1924TPL PTRA1924THL
PTDHW242424G 24.00 x 24.00 x 24.00 610 x 610 x 610 12 Window 12 IP55 PTPDH2424A A24P24 PTRA1924TPL PTRA1924THL
PTDHS362424G4 36.50 x 24.00 x 24.00 927 x 610 x 610 19 Solid 4 IP66 PTPDH3624A A36P24 PTRA1936TPL PTRA1936THL
PTDHS362424G 36.50 x 24.00 x 24.00 927 x 610 x 610 19 Solid 12 IP55 PTPDH3624A A36P24 PTRA1936TPL PTRA1936THL
PTDHW362424G 36.50 x 24.00 x 24.00 927 x 610 x 610 19 Window 12 IP55 PTPDH3624A A36P24 PTRA1936TPL PTRA1936THL
PTDHS482424G4 48.50 x 24.00 x 24.00 1232 x 610 x 610 26 Solid 4 IP66 PTPDH4824A A48P24 PTRA1948TPL PTRA1948THL
PTDHS482424G 48.50 x 24.00 x 24.00 1232 x 610 x 610 26 Solid 12 IP55 PTPDH4824A A48P24 PTRA1948TPL PTRA1948THL
PTDHW482424G 48.50 x 24.00 x 24.00 1232 x 610 x 610 26 Window 12 IP55 PTPDH4824A A48P24 PTRA1948TPL PTRA1948THL
CHS Controls AB
Tel +46 42 38 61 00, Fax +46 42 38 61 29
chs@chscontrols.se www.chscontrols.se

910
Networking: Wall-Mount Cabinets
PROTEK® Wall-Mount and Double-Hinge Cabinets
PH (763) 422-2661 • FX (763) 422-2588 • homanonline.com
Subject to change without notice © 2011 Pentair Technical Products
PROTEK® DH Double-Hinge Fan and Filter Thermal Packages, UL and NEMA Type 1
Industry Standards
UL 508A Listed; Type 1; File Number E619967
cUL Listed per CSA C22.2 No. 94; Type 1; File Number E61997
NEMA / EEMAC: Type 1
IEC 60529, IP 55
Application
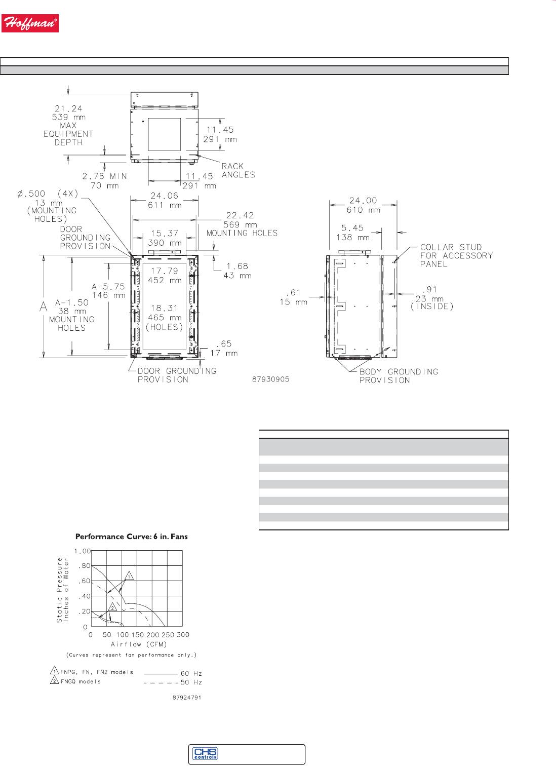
PROTEK® Fan and Filter Packages are ideal for protecting sensitive
19-in. rack equipment from harmful environmental contaminants
such as falling dirt, dust and dripping water. Use for applications
where the ambient air can be used to cool the internal equipment
and where protection from falling dirt and dripping water is needed.
Filters assist in removing contaminants and are easily removed for
periodic cleaning without accessing the cabinet. Top-mounted fans
provide increased airow and maximize heat dissipation of internally
mounted equipment. Both top-mounted fans and bottom-mounted
intake lters are positioned away from 19-inch rack-mounting areas.
Features
• Solid door provides complete physical and visual protection
• Window door, made with scratch-resistant safety glass, provides
equipment monitoring without opening the door to minimize
contamination
• Fully welded and ground body and door construction for long-
term good appearance and durability
• Foam-in-place seamless gasket around door seals against outdoor
air inltration; is non-absorbing and chemically resistant
• Type 1 cabinets have window doors and a locking wing knob
with two keys. They provide security and convenience in indoor
applications.
• One set of adjustable tapped rack angles included
• Optional square hole (.375 in.) rack angles available for equipment
mounting exibility
• Rack angles are plated and self-grounding for durability and safety
• Collar studs provided on back of cabinet for mounting accessory
panels
• Accessory panels for mounting additional accessories at the back
of the cabinet include tie-down points and pre-drilled holes
• Plenum rated for use in air exchange areas
• Double-hinged for easy equipment access
• Front access to center body hinging and back section latches
• Exclusive tool-less self-fastening latch is easy to open, yet
automatically closes securely
•
Latch on front of door eliminates need to access sides to open door
or back section latches
• Latch-free sides permit cabinet to be installed tightly into a corner
Specications
• Doors made of 16 gauge steel and body made of 14 gauge steel
• Convenient studs provided on both door and body for bonding
and grounding
• Rack angles tapped 10-32 per EIA standards; made of 12 gauge
self-grounding plated steel
• Window is clear, .25-in. thick, scratch- and impact-resistant safety
glass
• Optional polycarbonate window (not plenum rated) can be eld-
or factory-installed. Contact Homan Customer Service for factory
installation.
• Twenty 10-32 screws included
• Pagoda top-mounted 6-in. fan and bottom-mounted 10-in. lter
inlet
• Top fan shroud protects cabinet and fan from falling debris and
dripping water
• Bottom-mounted air inlet with outside removable and cleanable
lter
• Regular lter cleaning required for optimum thermal performance
• Operates on 110/115 VAC 50/60 Hz line voltage
• Standard NEMA 15 A plug internal to the cabinet (5-15P)
Finish
Pretreated steel coated with RAL 7035 light-gray, textured, low-gloss
polyester powder paint. Other paint nishes available—contact
Homan Customer Service for details.
Load Rating
WARNING: The cabinet must be safely and correctly mounted to the
wall to support the total weight of the cabinet and its contents. Due
to various applications and wall constructions, consultation with a
structural engineer and analysis of the mounting wall is advised.
Bulletin: DWDH2
Standard ProductDouble-Hinged Window-Door Type 1 Fan and Filter Packages
Catalog Number AxBxC in. AxBxC mm
Rack
Units
Accessory
Panels
Standard
Panel
Additional Optional
Rack Angles
(Tapped Holes)
Additional Optional
Rack Angles
(Square Holes)
PTDHW242424GF 24.00 x 24.00 x 24.00 610 x 610 x 610 12 PTPDH2424A A24P24 PTRA1924TPL PTRA1924THL
PTDHW362424GF 36.50 x 24.00 x 24.00 927 x 610 x 610 19 PTPDH3624A A36P24 PTRA1936TPL PTRA1936THL
PTDHW482424GF 48.50 x 24.00 x 24.00 1232 x 610 x 610 26 PTPDH4824A A48P24 PTRA1948TPL PTRA1948THL
Load Ratings
Height
Max. Load Rack Angles
Mounted to Center Section
Max. Load Accessory Panel Mounted
Rear Section to Collar Studs
16 in. 100 lb. 50 lb.
20 in. 100 lb. 80 lb.
24 in. 100 lb. 100 lb.
36 in. 125 lb. 200 lb.
48 in. 175 lbs. 300 lb.
CHS Controls AB
Tel +46 42 38 61 00, Fax +46 42 38 61 29
chs@chscontrols.se www.chscontrols.se

911
Networking: Wall-Mount Cabinets
PROTEK® Wall-Mount and Double-Hinge Cabinets
PH (763) 422-2661 • FX (763) 422-2588 • homanonline.com
Subject to change without notice © 2011 Pentair Technical Products
Technical Operating Information Fan Unit (6-in. Fan with Cord) Replacement Filter No. AFLTR10
Hz Voltage VAC CFM W @ 50/60 Hz Full Load Amp @ 50/60 Hz Noise SIL
50/60 115 200/240 36/32 .45/.36 50/56 dB
Thermal Performance for Fan and Filter DH
Packages
PROTEK Fan and Filter Packages calculated thermal
performance
Max. Internal Temperature: 100 F
Voltage / Hertz: 115 VAC/60 Hz
Filters: Clean (Regular cleaning required to maintain airow)
Air Volume: 200 CFM (Exact CFM dependant on Voltage, Frequency,
and lter eciency)
Max. Elevation: 6,000 ft. (Contact Homan for elevations above
6,000 ft.)
Thermal Performance PROTEK® Fan and Filter Packages
Ambient Temperature (°F) Watts (Heat) Dissipated
100 or above Not recommended
Consider PROTEK Air conditioner Package
95 316
90 632
85 948
80 1264
75 1580
70 1896
65 2212
60 2528
55 2844
Watts = .316 x CFM x Delta T (°F) (at sea level)
Delta T = Max internal Temperature (degrees F) – Ambient external Temperature (degrees F)
Ambient temperature is the air temperature in and around the intake opening of the cabinet. Fan cooling can
never cool the equipment below ambient temperature.
CHS Controls AB
Tel +46 42 38 61 00, Fax +46 42 38 61 29
chs@chscontrols.se www.chscontrols.se

912
Networking: Wall-Mount Cabinets
PROTEK® Wall-Mount and Double-Hinge Cabinets
PH (763) 422-2661 • FX (763) 422-2588 • homanonline.com
Subject to change without notice © 2011 Pentair Technical Products
PROTEK® DH Double-Hinge Thermal AC Package, UL and NEMA Type 4 or 12
Self-Closing Latch Type 4 Enclosures
Industry Standards
PROTEK Air Conditioner Packages Indoor (Type 12)
UL 508A Listed; Type 12; File Number E619967
cUL Listed per CSA C22.2 No. 94; Type 12; File Number E61997
NEMA / EEMAC: Type 12
IEC 60529, IP 66
PROTEK Air Conditioner Packages Outdoor (Type 4)
UL 508A Listed; Type 12, 4; File Number E619967
cUL Listed per CSA C22.2 No. 94; Type 12, 4; File Number E61997
NEMA / EEMAC: Type 12, 4
IEC 60529, IP 66
Application
PROTEK® DH Thermal Packages are an excellent, o-the-shelf
choice for mounting 19-in. rack network equipment in wet or dirty
environments where ltration or air conditioning is required and oor
space is at a premium. These complete packages can be mounted to
a pole or wall and hinged on the left or right. The mounted cabinet
swings open to provide easy equipment service and installation
access. Complete Fan and Filter and Air Conditioner Packages are
available to match application requirements.
Features
• Solid door provides complete physical and visual protection
• Window door, made with scratch-resistant safety glass, provides
equipment monitoring without opening the door to minimize
contamination
• Fully welded and ground body and door construction for long-
term good appearance and durability
• Foam-in-place seamless gasket around door seals against outdoor
air inltration; is non-absorbing and chemically resistant
• Type 12 cabinets have window doors and a locking wing knob
with two keys. They provide security and convenience in indoor
applications.
• Type 4 cabinets have solid doors and a padlock-capable, tamper-
resistant, quarter-turn latch (tool included). They provide easy
operation and locking options in indoor and outdoor applications.
• One set of adjustable tapped rack angles included
• Optional square hole (.375 in.) rack angles available for equipment
mounting exibility
• Rack angles are plated and are self-grounding for durability and
safety
• Collar studs provided on back of cabinet for mounting accessory
panels
• Accessory panels for mounting additional accessories at the back
of the cabinet include tie-down points and pre-drilled holes
• Plenum rated for use in air exchange areas
• Double-hinged for easy equipment access
• Front access to center body hinging and back section latches
• Exclusive tool-less self-fastening latch is easy to open, yet
automatically closes securely
•
Latch on front of door eliminates need to access sides to open door
or back section latches
• Cabinet shipped with air conditioner uninstalled
Specications
• Doors made of 16 gauge steel and body made of 14 gauge steel
• Convenient studs provided on both door and body for bonding
and grounding
• Rack angles tapped 10-32 per EIA standards; made of 12 gauge
self-grounding plated steel
• Window is clear, .25-in. thick, scratch- and impact-resistant safety
glass
• Optional polycarbonate window (not plenum rated) can be eld-
or factory-installed. Contact Homan Customer Service for factory
installation.
• Twenty 10-32 screws included
• Right-side-mounted T4 Line Indoor/Outdoor Air Conditioner
• Operates on 110/115 VAC 50/60 Hz line voltage
• Standard NEMA 15 A plug internal to the cabinet (5-15P)
• See table for technical operating information
• Routine maintenance required for optimum performance (see
service manual)
Finish
Pretreated steel coated with RAL 7035 light-gray, textured, low-gloss
polyester powder paint. Other paint nishes available—contact
Homan Customer Service for details.
Load Rating
WARNING: The cabinet must be safely and correctly mounted to the
wall to support the total weight of the cabinet and its contents. Due
to various applications and wall constructions, consultation with a
structural engineer and analysis of the mounting wall is advised.
Bulletin: DWDH2
Standard Product Double-Hinged Window-Door Type 12 Air Conditioner Packages
Catalog Number AxBxC in. AxBxC mm
Rack
Units
Accessory
Panels
Standard
Panel
Additional Optional
Rack Anglesl
(Tapped Holes)
Additional Optional
Rack Angles
(Square Holes)
PTDHW242429GA 24.00 x 24.00 x 29.00 610 x 610 x 737 12 PTPDH2424A A24P24 PTRA1924TPL PTRA1924THL
PTDHW362429GA 36.50 x 24.00 x 29.00 927 x 610 x 737 19 PTPDH3624A A36P24 PTRA1936TPL PTRA1936THL
PTDHW482429GA 48.50 x 24.00 x 29.00 1232 x 610 x 737 26 PTPDH4824A A48P24 PTRA1948TPL PTRA1948THL
Standard Product Double-Hinged Solid-Door Type 4 Air Conditioner Packages
Catalog Number AxBxC in. AxBxC mm
Rack
Units
Accessory
Panels
Standard
Panel
Additional Optional
Rack Anglesl
(Tapped Holes)
Additional Optional
Rack Angles
(Square Holes)
PTDHS242429GA4 24.00 x 24.00 x 29.00 610 x 610 x 737 12 PTPDH2424A A24P24 PTRA1924TPL PTRA1924THL
PTDHS362429GA4 36.50 x 24.00 x 29.00 927 x 610 x 737 19 PTPDH3624A A36P24 PTRA1936TPL PTRA1936THL
PTDHS482429GA4 48.50 x 24.00 x 29.00 1232 x 610 x 737 26 PTPDH4824A A48P24 PTRA1948TPL PTRA1948THL
CHS Controls AB
Tel +46 42 38 61 00, Fax +46 42 38 61 29
chs@chscontrols.se www.chscontrols.se

913
Networking: Wall-Mount Cabinets
PROTEK® Wall-Mount and Double-Hinge Cabinets
PH (763) 422-2661 • FX (763) 422-2588 • homanonline.com
Subject to change without notice © 2011 Pentair Technical Products
Load Ratings
Height
Max. Load Rack Angles
Mounted to Center Section
Max. Load Accessory Panel Mounted
Rear Section to Collar Studs
16 in. 100 lb. 50 lb.
20 in. 100 lb. 80 lb.
24 in. 100 lb. 100 lb.
36 in. 125 lb. 200 lb.
48 in. 175 lb. 300 lb.
Thermal Performance for Air Conditioner DH
Packages
PROTEK Air Conditioner calculated thermal performance
AC Performance: 800 BTU/hour or 235 Watts
Voltage / Hertz: 115 VAC/60 Hz
Max. Ambient Temperature: 131 F
Min. Ambient Temperature: -40 F
Max. Internal Temperature: 100 F (Allowable)
Thermal Performance PROTEK® Air Conditioner
Ambient
Temperature (°F)
Watts (Heat) Dissipated
Cabinet Height: 24 in.
Watts (Heat) Dissipated
Cabinet Height: 36 in.
Watts (Heat) Dissipated
Cabinet Height: 48 in.
130 N/A N/A N/A
120 63 27 N/A
110 149 131 105
100 234 234 234
90 320 338 364
80 405 442 493
70 491 546 623
60 576 649 752
50 662 753 881
40 747 857 1011
N/A = Not applicable and not recommended in these applications
1 BTU = 3.413 watts
CHS Controls AB
Tel +46 42 38 61 00, Fax +46 42 38 61 29
chs@chscontrols.se www.chscontrols.se

914
Networking: Wall-Mount Cabinets
PROTEK® Accessories
PH (763) 422-2661 • FX (763) 422-2588 • homanonline.com
Subject to change without notice © 2011 Pentair Technical Products
PROTEK® Access ories
PROTEK® Single-Door Type 4 or 12 Wall-Mount
Cabinet Accessory Panels
Where equipment mounting space is limited, Accessory Panels
increase cabinet capacity by providing a mounting surface for 19-in.
equipment and accessories at the back of the cabinet. The panels
mount on collar studs provided in the cabinet. They include tie
downs for VELCRO® Cable Wraps and mounting holes for rack angle
brackets, shelves and other accessories. Panels have white paint
nish.
VELCRO is a trademark of Velcro Industries B.V.
Bulletin: DWS12
Catalog Number AxB in. AxB mm Material Fits Cabinet Size
PTP2424A 22.20 x 22.20 564 x 564 12 gauge steel 24.00 x 24.00
PTP3624A 34.20 x 22.20 869 x 564 12 gauge steel 36.00 x 24.00
PTP4824A 46.20 x 22.20 1173 x 564 12 gauge steel 48.00 x 24.00
PROTEK® DH Type 1, 4 or 12 Double-Hinged
Wall-Mount Cabinet Accessory Panels
Where equipment mounting space is limited, Accessory Panels
increase cabinet capacity by providing a mounting surface for 19-in.
equipment accessories at the back of the cabinet. The panels mount
on collar studs provided in the cabinet. They include tie downs for
VELCRO® Cable Wraps and mounting holes for rack angle brackets,
shelves, and other accessories. Panels have a white paint nish over
12 gauge steel.
VELCRO is a trademark of VELCRO Industries B.V.
Bulletin: DWS12
Catalog Number
D
in./mm
E
in./mm Fits Cabinet Size
PTPDH1624A 21.00
533
13.00
330
16.00 x 24.00
PTPDH2024A 21.00
533
17.00
452
20.00 x 24.00
PTPDH2424A 21.00
533
21.00
533
24.00 x 24.00
PTPDH3624A 33.00
838
21.00
533
36.00 x 24.00
PTPDH4824A 45.00
1143
21.00
533
48.00 x 24.00
CHS Controls AB
Tel +46 42 38 61 00, Fax +46 42 38 61 29
chs@chscontrols.se www.chscontrols.se

915
Networking: Wall-Mount Cabinets
PROTEK® Accessories
PH (763) 422-2661 • FX (763) 422-2588 • homanonline.com
Subject to change without notice © 2011 Pentair Technical Products
PROTEK® Rack Angles
Square- and tapped-hole rack angles t into PROTEK® single-and
double-hinged cabinets.
Bulletin: DWS12
Catalog Number Hole Type Fits Cabinet Height
Rack
Units
PTRA1916TPL Tapped 16.00 7
PTRA1916THL Square 16.00 7
PTRA1920TPL Tapped 20.00 10
PTRA1920THL Square 20.00 10
PTRA1924TPL Tapped 24.00 12
PTRA1924THL Square 24.00 12
PTRA1936TPL Tapped 36.00 19
PTRA1936THL Square 36.00 19
PTRA1948TPL Tapped 48.00 26
PTRA1948THL Square 48.00 26
PROTEK® Polycarbonate Window Inserts
Polycarbonate window inserts provide additional impact protection.
They are eld-installed in place of the safety glass provided with the
enclosure. No special tools are required.
Bulletin: DWS12
Catalog Number AxB in./mm Fits Cabinet Size Description
PTWR1624POLY 16.00 x 24.00
406 x 610
16.00 x 20.00 Clear, 0.23-in. thick
PTWR2024POLY 20.00 x 24.00
508 x 610
20.00 x 24.00 Clear, 0.23-in. thick
PTWR2424POLY 24.00 x 24.00
610 x 610
24.00 x 24.00 Clear, 0.23-in. thick
PTWR3624POLY 36.00 x 24.00
914 x 610
36.00 x 24.00 Clear, 0.23-in. thick
PTWR4824POLY 48.00 x 24.00
1219 x 610
48.00 x 24.00 Clear, 0.23-in. thick
CHS Controls AB
Tel +46 42 38 61 00, Fax +46 42 38 61 29
chs@chscontrols.se www.chscontrols.se

916
Networking: Wall-Mount Cabinets
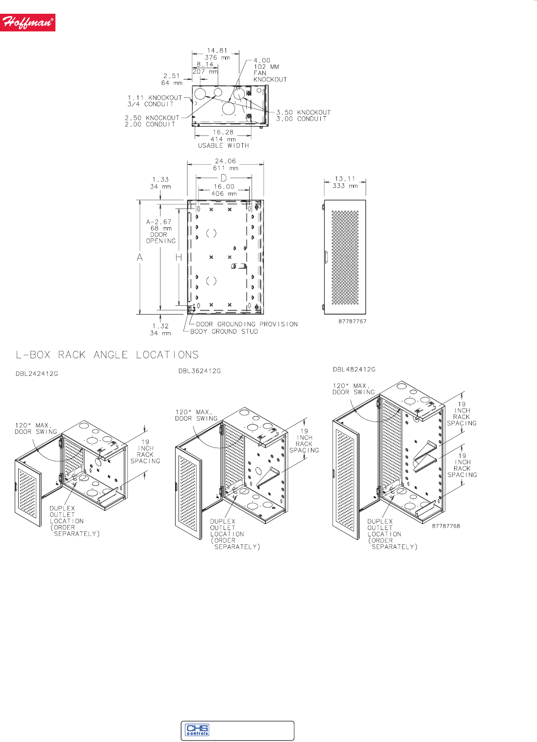
L-BOX® Wall-Mount Cabinet and Accessories
PH (763) 422-2661 • FX (763) 422-2588 • homanonline.com
Subject to change without notice © 2011 Pentair Technical Products
L-BOX® Wall-Mo unt Cabine t and Accesso ries
L-BOX®, Type 1
Industry Standards
UL 1863 Listed; File No. E230874
UL 508A Listed; Type 1; File Number E61997
cUL Listed per CSA C22.2 No. 182.4; File No. E230874
Ventilation complies with UL 60950
Designed in accordance with BICSI TDMM Tenth edition,
Chapter 7, Telecommunication Enclosures (TE)
EIA 310-D
IEC 60529, IP30
Application
The low-prole, vertically-oriented L-BOX® wall-mount cabinet is
extremely versatile and can be used in public settings to mount, store
and protect network equipment, patch panels and connections. The
hinged, L-shaped door provides full access on two sides to installed
equipment while xed rack angles accommodate varying equipment
sizes.
Features
• Spring-loaded, self-retained hinge pins allow door removal
• 120-degree door opening
• Quarter-turn latches with key lock (Code 333)
• One set of xed rack angles is included on 24- and 36-in. (610- and
914-mm) tall models and two on 48-in. (1219-mm) tall models
• Rack angles on 36-in. (914-mm) models can be positioned either at
the top or the bottom of the cabinet
• 36- and 48-in. (914- and 1219-mm) tall models have space for patch
panel or shelf brackets
• Knockouts for 4-in. (102-mm) fan on top and bottom of cabinet
• Wiring knockouts (7/8 in., 1-3/8 in., and 3 in.) on top and bottom of
cabinet. Two 3-in. cable entry knockouts on back.
• Multiple cable tie-down points on back of cabinet
• Keyhole mounting slots spaced 16.00 in. (406 mm) on center for
easy cabinet mounting
• Includes package of twenty 10-32 mounting screws
Specications
• Manufactured from 14 gauge mild steel
• Self-grounding mounting angles made of 12 gauge plated steel
• Bonding provision on door
• Ground stud on body
• EIA Universal 5/8 - 5/8 - 1/2 in. rack angle mounting hole pattern
matches industry standards. Holes are tapped 10-32.
Finish
Pretreated steel coated with RAL 7035 light-gray textured, low-gloss
polyester powder paint. Other nishes available—contact Homan
Customer Service.
Load Rating
75 lb. (34.0 kg)
Bulletin: DWS1
Standard Product
Catalog Number AxBxC in. AxBxC mm H (in.) H (mm) Rack Units
DBL242412G 24.00 x 24.00 x 12.34 610 x 610 x 313 22.00 559 6
DBL362412G 36.00 x 24.00 x 12.34 915 x 610 x 313 34.00 864 6
DBL482412G 48.00 x 24.00 x 12.34 1220 x 610 x 313 46.00 1168 2 sets of 6
CHS Controls AB
Tel +46 42 38 61 00, Fax +46 42 38 61 29
chs@chscontrols.se www.chscontrols.se

917
Networking: Wall-Mount Cabinets
L-BOX® Wall-Mount Cabinet and Accessories
PH (763) 422-2661 • FX (763) 422-2588 • homanonline.com
Subject to change without notice © 2011 Pentair Technical Products
CHS Controls AB
Tel +46 42 38 61 00, Fax +46 42 38 61 29
chs@chscontrols.se www.chscontrols.se

918
Networking: Wall-Mount Cabinets
L-BOX® Wall-Mount Cabinet and Accessories
PH (763) 422-2661 • FX (763) 422-2588 • homanonline.com
Subject to change without notice © 2011 Pentair Technical Products
Bonding and Grounding Kit
Provides the cable and mounting
hardware required to ground
equipment to the door and the body
of the cabinet.
Bulletin: DWS1
Catalog Number Description
DBGRDK Bonding and Grounding Kit
Duplex Outlet Kit
15 A duplex outlet is factory-
mounted in three-sided, plated steel
enclosure. Outlet enclosure mounts
on hinge side of door in lower corner
of cabinet. Mounting hardware
provided.
Bulletin: DWS1
Catalog Number Description Current Rating
DBDXK Duplex Outlet Kit 15 A
Fan Filter and Finger Guard Kit
Low-density lter kit for 4-in.
(102-mm) and 6-in. (152-mm) fans.
Can also be used as vent. Filter is
removable and can be cleaned
and reused. Mounting hardware
included.
Bulletin: DTHRM, DWS1
Catalog Number Description Fits
AFLTR4LD Fan Filter and Finger Guard Kit 4-in. fans
AFLTR6LD Fan Filter and Finger Guard Kit 6-in. fans
Patch Panel Rack Angles
Swiveling rack angles drop 45
degrees to provide convenient access
to equipment mounted on patch
panels. Provide additional patch
panel location in 36- and 48-in. (914-
and 1219-mm) high cabinets. Made
of self-grounding, plated 12 gauge
steel. Mounting hardware included.
Set of two.
Bulletin: DWS1
Catalog Number Description Rack Units
DBPRA4U Patch Panel Rack Angles 4
CHS Controls AB
Tel +46 42 38 61 00, Fax +46 42 38 61 29
chs@chscontrols.se www.chscontrols.se

919
Networking: Wall-Mount Cabinets
L-BOX® Wall-Mount Cabinet and Accessories
PH (763) 422-2661 • FX (763) 422-2588 • homanonline.com
Subject to change without notice © 2011 Pentair Technical Products
Shelves
Shelves provide additional storage
in 36- and 48-in. (914- and 1219-mm)
tall cabinets. Made of self-grounding
plated 16 gauge steel.
75 lb. (34.0 kg) load rating.
RAL 7035 polyester powder coat
nish.
Bulletin: DWS1
Catalog Number Description
Length
in./mm
Depth
in./mm Fits Cabinet Depth
DBSHELF8 Steel Shelf 19.05
484
7.25
184
8 in.
DBSHELF12 Steel Shelf 19.05
484
11.08
281
8 or 12 in.
Strut Wall-Mounting Kit
Provides secure mounting for
cabinet. RAL 7035 polyester powder
coat nish.
Bulletin: DWS1
Catalog Number Description
Length
in./mm
DB24WMTK Strut Wall-Mounting Kit 24.00
610
CHS Controls AB
Tel +46 42 38 61 00, Fax +46 42 38 61 29
chs@chscontrols.se www.chscontrols.se

920
Networking: Wall-Mount Cabinets
D-BOX™ Wall-Mount Enclosure and Accessories
PH (763) 422-2661 • FX (763) 422-2588 • homanonline.com
Subject to change without notice © 2011 Pentair Technical Products
D-BOX™ Wall -Mount Enc losure an d Accessori es
D-BOX™, Type 1
Industry Standards
UL 1863 Listed; File No. E230874
UL 508A Listed; Type 1; File Number E61997
cUL Listed per CSA C22.2 No. 182.4; File No. E230874
Ventilation complies with UL 60950
Telcordia NEBSTM Requirements: Physical Protection, GR-63-CORE,
Zone 4. Tested with 100 lb. (45.4 kg) of equipment installed.
Designed in accordance with BICSI TDMM Tenth edition, Chapter 7,
Telecommunication Enclosures (TE)
EIA 310-D
IEC 60529, IP40
Application
Ideal for retail applications where it is necessary to house 19-in.
network equipment in a public location, the horizontally-oriented
D-BOX™ is a low-prole cabinet with a hinged door for convenient
front access and a combination of xed and rotating rack angles to
accommodate varying equipment sizes.
Features
• Spring-loaded, self-retained hinge pins allow door removal
• Reversible door ts ush to body with no exposed corners
• Knockouts for 4-in. fan on top and bottom of enclosure
• Wiring knockouts (7/8 in., 1-3/8 in., and 3 in.) on top and bottom of
enclosure. Two 3-in. cable entry knockouts on back.
• 120-degree door opening
• Multiple cable tie-down points on back of enclosure
• Quarter-turn latch with key lock
• Keyhole mounting slots spaced 16.00 in. (406 mm) on center for
easy enclosure mounting
• Bosses provided for mounting accessories such as cable spools
• Self-grounding mounting angles made of 12 gauge galvanized
steel
• Patch panel mounting angles rotate down for access
• Flange around door opening protects interior
• Bonding provision on door
• Ground stud on body
• EIA Universal 5/8 - 5/8 - 1/2 in. vertical mounting hole pattern
matches industry standards. Holes are tapped 10-32.
• Includes package of twenty 10-32 mounting screws
Specications
• Door manufactured from 14 gauge mild steel
• Body manufactured from 16 gauge mild steel
Finish
Pretreated steel coated with RAL 7035 light-gray textured, low-gloss
polyester powder paint. Other nishes available—contact Homan
Customer Service.
Load Rating
100 lb. (45.4 kg)
Bulletin: DWS1
CHS Controls AB
Tel +46 42 38 61 00, Fax +46 42 38 61 29
chs@chscontrols.se www.chscontrols.se

921
Networking: Wall-Mount Cabinets
D-BOX™ Wall-Mount Enclosure and Accessories
PH (763) 422-2661 • FX (763) 422-2588 • homanonline.com
Subject to change without notice © 2011 Pentair Technical Products
Standard Product
Catalog Number AxBxC in. AxBxC mm H (in.) H (mm) Rack Units
DBS24248G 24.00 x 24.00 x 8.34 610 x 610 x 212 22.00 559 4
DBS36248G 36.00 x 24.00 x 8.34 915 x 610 x 212 34.00 864 4
DBS48248G 48.00 x 24.00 x 8.34 1220 x 610 x 212 46.00 1168 4
DBS242412G 24.00 x 24.00 x 12.34 610 x 610 x 313 22.00 559 6
DBS362412G 36.00 x 24.00 x 12.34 915 x 610 x 313 34.00 864 6
DBS482412G 48.00 x 24.00 x 12.34 1220 x 610 x 313 46.00 1168 6
CHS Controls AB
Tel +46 42 38 61 00, Fax +46 42 38 61 29
chs@chscontrols.se www.chscontrols.se

922
Networking: Wall-Mount Cabinets
D-BOX™ Wall-Mount Enclosure and Accessories
PH (763) 422-2661 • FX (763) 422-2588 • homanonline.com
Subject to change without notice © 2011 Pentair Technical Products
Bonding and Grounding Kit
Provides the cable and mounting
hardware required to ground
equipment to the door and the body
of the cabinet.
Bulletin: DWS1
Catalog Number Description
DBGRDK Bonding and Grounding Kit
Duplex Outlet Kit
15 A duplex outlet is factory-
mounted in three-sided, plated steel
enclosure. Outlet enclosure mounts
on hinge side of door in lower corner
of cabinet. Mounting hardware
provided.
Bulletin: DWS1
Catalog Number Description Current Rating
DBDXK Duplex Outlet Kit 15 A
Equipment Rack Angles
Fixed rack angles can be added
to 36-in. and 48-in. tall cabinets
for extra 19-in rack equipment
mounting. Made of steel with clear
zinc plating. EIA spaced holes are
tapped 10-32. Mounts to raised pads
on cabinet inside back with provided
hardware.
Bulletin: DWS1
Catalog Number Description Rack Units
DBERA4U Equipment Rack Angles 4
DBERA6U Equipment Rack Angles 6
Fan Filter and Finger Guard Kit
Low-density lter kit for 4-in.
(102-mm) and 6-in. (152-mm) fans.
Can also be used as vent. Filter is
removable and can be cleaned
and reused. Mounting hardware
included.
Bulletin: DTHRM, DWS1
Catalog Number Description Fits
AFLTR4LD Fan Filter and Finger Guard Kit 4-in. fans
AFLTR6LD Fan Filter and Finger Guard Kit 6-in. fans
Padlock Kit
Kit includes eld installable hasp and
staple. Fits padlocks with maximum
5/16 in. (8mm) shackle diameter. No
drilling or layout required. Includes
mounting hardware.
Bulletin: DWS1
Catalog Number Description
DBPDLK Padlocking Kit
CHS Controls AB
Tel +46 42 38 61 00, Fax +46 42 38 61 29
chs@chscontrols.se www.chscontrols.se

923
Networking: Wall-Mount Cabinets
D-BOX™ Wall-Mount Enclosure and Accessories
PH (763) 422-2661 • FX (763) 422-2588 • homanonline.com
Subject to change without notice © 2011 Pentair Technical Products
Patch Panel Rack Angles
Swiveling rack angles drop 45
degrees to provide convenient access
to equipment mounted on patch
panels. Provide additional patch
panel location in 36- and 48-in. (914-
and 1219-mm) high cabinets. Made
of self-grounding, plated 12 gauge
steel. Mounting hardware included.
Set of two.
Bulletin: DWS1
Catalog Number Description Rack Units
DBPRA4U Patch Panel Rack Angles 4
Shelves
Shelves provide additional storage
in 36- and 48-in. (914- and 1219-mm)
tall cabinets. Made of self-grounding
plated 16 gauge steel.
75 lb. (34.0 kg) load rating.
RAL 7035 polyester powder coat
nish.
Bulletin: DWS1
Catalog Number Description
Length
in./mm
Depth
in./mm Fits Cabinet Depth
DBSHELF8 Steel Shelf 19.05
484
7.25
184
8 in.
DBSHELF12 Steel Shelf 19.05
484
11.08
281
8 or 12 in.
Strut Wall-Mounting Kit
Provides secure mounting for
cabinet. RAL 7035 polyester powder
coat nish.
Bulletin: DWS1
Catalog Number Description
Length
in./mm
DB24WMTK Strut Wall-Mounting Kit 24.00
610
CHS Controls AB
Tel +46 42 38 61 00, Fax +46 42 38 61 29
chs@chscontrols.se www.chscontrols.se

924
Networking: Wall-Mount Cabinets
POLYPRO® WiFi, Type 4X
PH (763) 422-2661 • FX (763) 422-2588 • homanonline.com
Subject to change without notice © 2011 Pentair Technical Products
POLYPRO® WiFi, Type 4X
POLYPRO® WiFi, Type 4X
Industry Standards
UL 508A Listed; Type 4, 4X, 12, 13; File No. E61997
cUL Listed per CSA C22.2 No 94; Type 4, 4X, 12, 13; File No.
E61997
Enclosure ammability evaluated per UL 508A
Window ammability evaluated per UL 508A
NEMA/EEMAC Type 4, 4X, 12, 13
CSA File No. 42186; Type 4, 4X, 12, 13 (solid covers only)
IEC 60529, IP66
Application
POLYPRO® WiFi enclosures provide protection for wireless equipment
in both indoor and outdoor locations. The polyester construction
and wood panel allow WiFi and WLAN signals to pass through
the enclosure unimpeded. They perform exceptionally well in
applications where harsh chemicals, weather extremes, a corrosive
environment or ames demand toughness from a lightweight
enclosure. Providing excellent ultraviolet protection and a tight
environmental seal, these versatile, feature-rich enclosures are also
recyclable.
Features
• Non-glass-lled polyester material oers superior UV resistance;
eliminates berbloom associated with berglass
• Provides excellent chemical resistance to a broad range of
solvents, alkalis and acids
• Resists cracking and provides excellent impact resistance
• Lighter-weight than berglass
• Recyclable
• Easy, dustless in-eld modications using standard tools
• Overlapping tongue-and-groove raised cover and gasket provide
secure Type 4X seal
• Removable snap-hinge cover allows for easy access to cover and
body for modications
• Molded layout grid on inside of body and solid covers assists with
component mounting
• Molded-in embosses for rear panel mounting
• Internal rail system and adjustable panel blocks allow for panel
height adjustment and installation of multiple panels
Specications
• Scratch-resistant polycarbonate windows
• Standard models include body and cover, two mounting feet, two
latch assemblies with optional cover screws and hardware, and
3/4-in. plywood panel
Finish
Polyester material is RAL 7035 light-gray textured nish inside and
out
Bulletin: DWS12
CHS Controls AB
Tel +46 42 38 61 00, Fax +46 42 38 61 29
chs@chscontrols.se www.chscontrols.se

925
Networking: Wall-Mount Cabinets
POLYPRO® WiFi, Type 4X
PH (763) 422-2661 • FX (763) 422-2588 • homanonline.com
Subject to change without notice © 2011 Pentair Technical Products
Standard Product
Catalog Number AxBxC in./mm Door Type
Panel Size
D x E
in./mm
F
in./mm
G
in./mm
H
in./mm
J
in./mm
L
in./mm
M
in./mm
N
in./mm
W
in./mm
D664WF 6.12 x 6.12 x 4.38
155 x 155 x 111
Solid 4.88 x 2.88
124 x 73
4.32
110
7.38
187
2.56
65
3.91
99
8.15
207
—
—
—
—
5.23
133
D664WFW 6.12 x 6.12 x 4.38
155 x 155 x 111
Window 4.88 x 2.88
124 x 73
4.32
110
7.38
187
2.56
65
3.91
99
8.15
207
4.25
108
2.25
57
5.23
133
D16148WF 16.12 x 14.01 x 8.35
409 x 356 x 212
Solid 14.75 x 12.88
375 x 327
8.27
210
17.27
439
12.56
319
7.91
201
18.04
458
—
—
—
—
15.32
389
D16148WFW 16.12 x 14.01 x 8.35
409 x 356 x 212
Window 14.75 x 12.88
375 x 327
8.27
210
17.27
439
12.56
319
7.91
201
18.04
458
14.25
362
12.25
311
15.32
389
CHS Controls AB
Tel +46 42 38 61 00, Fax +46 42 38 61 29
chs@chscontrols.se www.chscontrols.se

926
Networking: Wall-Mount Cabinets
POLYPRO® WiFi, Type 4X
PH (763) 422-2661 • FX (763) 422-2588 • homanonline.com
Subject to change without notice © 2011 Pentair Technical Products
Adjustable Panel Block Kit
Panel blocks slide inside POLYPRO internal rail system for panel
height adjustment within top 5 in. of enclosure. Allows for installation
of multiple panels.
Bulletin: PCRY
Catalog Number Qty.
APNLBLK 4
Includes Allen wrench
$GMXVWDEOH
SDQHOEORFN
;
Polyester Mounting Bracket Kits
Replacement POLYPRO mounting brackets are sold in sets of two and
include hardware for mounting to enclosure.
Included with standard POLYPRO models.
Bulletin: PCRY
&
/
PP
PP
Catalog Number Description (in.) Qty.
APOLYFT4 4.00 2
APOLYFT6 6.00 2
APOLYFT8 8.00 2
APOLYFT10 10.00 2
APOLYFT12 12.00 2
APOLYFT14 14.00 2
APOLYFT16 16.00 2
CHS Controls AB
Tel +46 42 38 61 00, Fax +46 42 38 61 29
chs@chscontrols.se www.chscontrols.se

927
Networking: Wall-Mount Cabinets
POLYPRO® WiFi, Type 4X
PH (763) 422-2661 • FX (763) 422-2588 • homanonline.com
Subject to change without notice © 2011 Pentair Technical Products
Aluminum Swing-Out Panels
Includes four POLYPRO Adjustable Panel Blocks. No enclosure
modication is required for installation.
Bulletin: PCRY
'
(
Catalog Number D x E (in.) D x E (mm)
A64PSWPNL 5.00 x 3.62 127 x 92
A66PSWPNL 5.00 x 5.62 127 x 143
A86PSWPNL 7.00 x 5.62 178 x 143
A88PSWPNL 7.00 x 7.62 178 x 194
A108PSWPNL 9.00 x 7.62 229 x 194
A1010PSWPNL 9.00 x 9.62 229 x 244
A1210PSWPNL 11.00 x 9.62 279 x 244
A1412PSWPNL 13.00 x 11.62 330 x 295
A1614PSWPNL 15.00 x 13.62 381 x 346
A1816PSWPNL 17.00 x 15.62 432 x 397
Stainless Steel Latches (Padlockable) Stainless Steel Latches can be retrotted on all POLYPRO models
with no modication or drilling required. Hinge/latch constructed of
corrosion-resistant polyester with a Type 316L stainless steel bail.
Included with standard POLYPRO models.
Bulletin: PCRY
Catalog Number Qty.
AQRLSS6 2
Hinge Retainers Hinge Retainers can be eld-installed without modication to
POLYPRO hinges for applications where easy cover removal is not
desired. Two retainers per enclosure is recommended. Kit includes
ten hinge retainers.
Bulletin: PCRY
Catalog Number Description Pkg. Qty.
AHGCLP POLYPRO Hinge Retainers 10
CHS Controls AB
Tel +46 42 38 61 00, Fax +46 42 38 61 29
chs@chscontrols.se www.chscontrols.se

928
Networking: Wall-Mount Cabinets
Fiberglass Hinge-Cover Type 4X WiFi Cabinet and Accessories
PH (763) 422-2661 • FX (763) 422-2588 • homanonline.com
Subject to change without notice © 2011 Pentair Technical Products
Fiberglass H inge-Cove r Type 4X WiFi Cabin et and Acces sories
Hinge-Cover WiFi, Type 4X
Industry Standards
UL 508A Listed; Type 4, 4X, 12, 13; File No. E61997
cUL Listed per CSA C22.2 No 94; Type 4, 4X, 12, 13; File No.
E61997
Enclosure ammability rating per UL 508
NEMA/EEMAC Type 4, 4X, 12, and 13
Window ammability rating per UL 508
CSA File No. LR42186:Type 4, 4X, 12, and 13
IEC 60529, IP66
Cabinets with solid doors are plenum rated.
Application
The berglass WiFi Cabinet is a secure, hinged enclosure that does
not impede WiFi or WLAN signals. It is ideal for housing wireless
equipment in locations such as tunnels, oor vaults, marinas, outside
walls or rooftops.
Features
• Fiberglass is easily punched, drilled, led or sawed
• Seamless foam-in-place gasket assures watertight and dusttight
seal
•
Molded-in-place threaded brass inserts and plated steel screws are
provided for mounting optional panels and terminal block kits
• Removable hinged cover attached to body with Type 316 stainless
steel hinge pin
• Screw cover enclosures are secured with two captivated Type 316
stainless steel slotted cross-point cover screws
• Available quick-release latches are corrosion-resistant polyester
located in corners to provide unobstructed access to enclosure
• Knockout padlock provisions included in each latch
Specications
• Enclosure and door made of molded berglass polyester that
resists chemicals and temperature change
• Scratch-resistant GE Lexan Margard® windows are permanently
bonded in place
•
Polyester mounting brackets and stainless steel attachment screws
are provided with each enclosure
• Hinge pin and bail are corrosion-resistant Type 316 stainless steel
• Includes a 3/4-in. plywood panel for mounting equipment
Finish
Fiberglass material is light gray inside and out.
Bulletin: DWS12
Standard Product Solid Door
Catalog Number AxBxC in./mm Panel
Panel
D X E
in./mm
Mounting
G x H
in./mm
Overall Size
L x W
in./mm
J
in./mm
K
in./mm
O
in./mm
P
in./mm
Q
in./mm
R
in./mm
T
in./mm
U
in./mm
D664CHSCFGP 6.00 x 6.00 x 4.00
152 x 152 x 102
A6P6WD 4.88 x 4.88
124 x 124
6.94 x 4.00
176 x 102
6.50 x 6.50
165 x 165
3.25
83
1.00
25
4.25
108
4.25
108
5.64
143
5.12
130
.12
3
5.64
143
D16148CHSCFGP 16.00 x 14.00 x 8.00
407 x 356 x 203
A16P14WD 14.75 x 12.88
375 x 327
16.94 x 12.00
430 x 305
16.55 x 14.55
420 x 370
6.23
158
2.08
53
12.25
311
14.25
362
15.56
395
15.12
384
.15
4
13.56
344
D181610CHSCFGP 18.00 x 16.00 x 10.00
457 x 407 x 254
A18P16WD 16.75 x 14.88
425 x 378
18.94 x 14.00
481 x 356
18.58 x 16.58
472 x 421
7.66
195
2.66
68
14.25
362
16.25
413
17.53
445
17.12
435
.16
4
15.53
394
Wood panels included with enclosure. Optional steel panels must be ordered separately.
Standard Product Window Door
Catalog Number AxBxC in./mm Panel
Panel
D X E
in./mm
Mounting
G x H
in./mm
Overall Size
L x W
in./mm
J
in./mm
K
in./mm
O
in./mm
P
in./mm
Q
in./mm
R
in./mm
T
in./mm
U
in./mm
D664CHSCFGWP 6.00 x 6.00 x 4.00
152 x 152 x 102
A6P6WD 4.88 x 4.88
124 x 124
6.94 x 4.00
176 x 102
6.50 x 6.50
165 x 165
3.25
83
1.00
25
4.25
108
4.25
108
5.64
143
5.12
130
.12
3
5.64
143
D16148CHSCFGWP 16.00 x 14.00 x 8.00
407 x 356 x 203
A16P14WD 14.75 x 12.88
375 x 327
16.94 x 12.00
430 x 305
16.55 x 14.55
420 x 370
6.23
158
2.08
53
12.25
311
14.25
362
15.56
395
15.12
384
.15
4
13.56
344
D181610CHSCFGWP 18.00 x 16.00 x 10.00
457 x 407 x 254
A18P16WD 16.75 x 14.88
425 x 378
18.94 x 14.00
481 x 356
18.58 x 16.58
472 x 421
7.66
195
2.66
68
14.25
362
16.25
413
17.53
445
17.12
435
.16
4
15.53
394
CHS Controls AB
Tel +46 42 38 61 00, Fax +46 42 38 61 29
chs@chscontrols.se www.chscontrols.se

929
Networking: Wall-Mount Cabinets
Fiberglass Hinge-Cover Type 4X WiFi Cabinet and Accessories
PH (763) 422-2661 • FX (763) 422-2588 • homanonline.com
Subject to change without notice © 2011 Pentair Technical Products
Quick-Release Latch Kit Two berglass-reinforced gray polyester latches with 316L stainless
steel bail and screw-hole plugs are included in each package.
Supplied with Continuous Hinge, Type 4X enclosures and available
for Fiberglass Hinged Cover WiFi Cabinet, Type 4X. Kit converts
screw-cover enclosures to quick-release without modication. No
tools needed to install. Padlocking provision is included.
Bulletin: A48Y
Catalog Number Description Kit Qty.
AL48 Quick-Release Latch Kit 2
CHS Controls AB
Tel +46 42 38 61 00, Fax +46 42 38 61 29
chs@chscontrols.se www.chscontrols.se

930
Networking: Wall-Mount Cabinets
Fiberglass Hinge-Cover Type 4X WiFi Cabinet and Accessories
PH (763) 422-2661 • FX (763) 422-2588 • homanonline.com
Subject to change without notice © 2011 Pentair Technical Products
Panels for WiFi Cabinets and Small Wall-Mount
Enclosures
Panels are available in both steel and wood. Steel panels are 14 gauge
steel with a white polyester powder paint nish. Wood panels are
3/4-in. plywood and are unnished. Wood panels are supplied with
Fiberglass Hinged-Cover and POLYPRO® Type 4X WiFi Cabinets.
Bulletin: DWS12, PNLJ, PNLWM
Catalog Number Material
Panel Size
D x E (in.)
Panel Size
D x E (mm) V (in.) V (mm)
A6P6 Steel 4.88 x 4.88 124 x 124 0.31 8
A6P6WD Wood 4.88 x 4.88 124 x 124 0.31 8
A16P14 Steel 14.75 x 12.88 375 x 327 0.25 6
A16P14WD Wood 14.75 x 12.88 375 x 327 0.25 6
A18P16 Steel 16.75 x 14.88 425 x 378 0.25 6
A18P16WD Wood 16.75 x 14.88 425 x 378 0.25 6
CHS Controls AB
Tel +46 42 38 61 00, Fax +46 42 38 61 29
chs@chscontrols.se www.chscontrols.se

931
Networking: Wall-Mount Cabinets
ULTRX® Fiberglass Type 4X WiFi Cabinet and Accessories
PH (763) 422-2661 • FX (763) 422-2588 • homanonline.com
Subject to change without notice © 2011 Pentair Technical Products
ULTRX® Fibergla ss Type 4X WiFi Cabi net and Acces sories
ULTRX® WiFi, Type 4X
Industry Standards
UL 508A Listed; Type 4, 4X, 12, 13; File No. E61997
cUL Listed per CSA C22.2 No 94; Type 4, 4X, 12, 13; File No.
E61997
Enclosure ammability rating per UL 508
Window ammability rating per UL 508
NEMA/EEMAC Type 4, 4X, 12, 13
CSA File No. LR42186: Type 4,4X, 12, 13
IEC 60529, IP66
Cabinets with solid doors are plenum rated.
Application
Ideal for locations such as tunnels, oor vaults, marinas, outside walls
or rooftops, the lightweight ULTRX® berglass WiFi cabinet does not
impede WiFi or WLAN signals and has optional rack angles that can
be added to support 19-in. rack-mount equipment.
Features
• Fiberglass is easily punched, drilled, led or sawed
• Seamless foam-in-place gasket assures watertight and dusttight
seal
• Enclosure may be rotated 180 degrees for left and right hinging
• Molded-in drip shields are standard with each enclosure
• Door opens 180 degrees
• Replaceable breakaway hinges
• Keylocking handle standard
• Molded-in DIN bosses
• Molded bosses on door provide additional mounting provisions
• Integral mounting rails provide innite panel adjustment front to
back
• Optional data pocket is high-impact thermoplastic
Specications
• Enclosure and door made of molded berglass polyester that
resists chemicals and temperature change
• Impact-resistant polycarbonate window is permanently bonded in
place
• Fiberglass mounting brackets and stainless steel attachment
screws are provided with each enclosure
• Includes a 3/4-in. plywood panel for mounting equipment
Finish
Exterior surface painted light-gray acrylic enamel for enhanced UV
protection.
Bulletin: DWS12
Standard Product
Catalog Number AxBxC mm/in. Door Type
Internal
Dimensions
A x B x C
mm/in. Panel
Panel Size
D x E
mm/in.
Mounting
G x H
mm/in.
Window
Size
M x N
mm/in.
F
mm/in.
J
mm/in.
K
mm/in.
P
mm/in.
Q
mm/in.
R
mm/in.
S
mm/in.
T
mm/in.
DU606030P 608 x 595 x 321
23.94 x 23.44 x 12.64
Solid 608 x 595 x 321
23.94 x 23.44 x 12.64
A24P24WD 533 x 533
21.00 x 21.00
555 x 568
21.86 x 22.36
498 x 486
19.62 x 19.12
287
11.31
500
19.68
21
0.81
62
2.43
68
2.68
56
2.21
489
19.25
489
19.25
DU606030WP 608 x 595 x 321
23.94 x 23.44 x 12.64
Window 608 x 595 x 321
23.94 x 23.44 x 12.64
A24P24WD 533 x 533
21.00 x 21.00
555 x 568
21.86 x 22.36
498 x 486
19.62 x 19.12
287
11.31
500
19.68
21
0.81
62
2.43
68
2.68
56
2.21
489
19.25
489
19.25
Wood panel included with enclosure. Optional steel panels must be ordered separately.
Window size applies to window door cabinets only.
CHS Controls AB
Tel +46 42 38 61 00, Fax +46 42 38 61 29
chs@chscontrols.se www.chscontrols.se

932
Networking: Wall-Mount Cabinets
ULTRX® Fiberglass Type 4X WiFi Cabinet and Accessories
PH (763) 422-2661 • FX (763) 422-2588 • homanonline.com
Subject to change without notice © 2011 Pentair Technical Products
CHS Controls AB
Tel +46 42 38 61 00, Fax +46 42 38 61 29
chs@chscontrols.se www.chscontrols.se

933
Networking: Wall-Mount Cabinets
ULTRX® Fiberglass Type 4X WiFi Cabinet and Accessories
PH (763) 422-2661 • FX (763) 422-2588 • homanonline.com
Subject to change without notice © 2011 Pentair Technical Products
ULTRX® Panel
Panels are available in both steel and wood. Steel panels are 14 gauge
steel and have a white nish. Panels have two .75-in. (19-mm) high
edge anges. They require the Panel Bracket Kit, catalog number
UUPB, to mount in the enclosure. Wood panels are 3/4-in. plywood
and are unnished. Wood panels are supplied with the enclosures.
Bulletin: DWS12, PNLWM
Catalog Number Material
D
mm/in.
E
mm/in.
V
mm/in.
A24P24 Steel 533
21.00
533
21.00
6
.25
A24P24WD Wood 533
21.00
533
21.00
6
.25
Requires UUPB Panel Bracket Kit to mount steel panel in cabinet.
Swing Frame
Swing Frame provides 19-in. rack-mounting capabilities with U-Style
(Type RA) mounting hole pattern. Quarter-turn latch has 100-degree
swing. Adjustable mounting provision. 14 gauge plated steel.
Includes mounting hardware. Swing frame maintains enclosure rating
if properly installed in a Homan enclosure.
Swing Frame will not slide all the way forward in 400-mm-deep
enclosures. Consult factory for more information.
Bulletin: UX1Y
Catalog Number
Fits A x B
mm/in.
L
mm/in.
W
mm/in.
Rack
Units
UU6060SF 610 x 610
24.00 x 24.00
540
21.25
535
21.08
11
UU7560SF 762 x 610
30.00 x 24.00
687
27.05
535
21.08
14
Use UU6060SF with DATACOM ULTRX Fiberglass Type 4X WiFi Cabinet.
Rack Angles (Type RA)
Pairs of full-length rack-mounting angles are available for mounting
1- in. (483-mm) rack-mounted equipment. Type RA angles are 14
gauge steel with .281-in. (7-mm) diameter mounting holes, spaced
per EIA standard RS-310-D (universal spacing). Use Clip Nut Package
(AN1032) to provide tapped holes at desired locations. Angles and
mounting hardware are plated steel. Mounting hardware is furnished.
Bulletin: UX1Y
Catalog Number
Fits A x B
mm/in.
L
mm/in.
N
mm/in.
Rack
Units
Pkg.
Qty.
UURA6060 610 x 610
24.00 x 24.00
552
21.75
10
.38
12 2
UURA7560 762 x 610
30.00 x 24.00
705
27.75
19
.75
15 2
Use UURA6060 with DATACOM ULTRX Fiberglass Type 4X WiFi Cabinet.
CHS Controls AB
Tel +46 42 38 61 00, Fax +46 42 38 61 29
chs@chscontrols.se www.chscontrols.se

934
Networking: Wall-Mount Cabinets
ULTRX® Fiberglass Type 4X WiFi Cabinet and Accessories
PH (763) 422-2661 • FX (763) 422-2588 • homanonline.com
Subject to change without notice © 2011 Pentair Technical Products
Grounding Device
Grounding Device provides a means
to attach a grounding conductor to
an ULTRX Swing-Out Panel or Swing-
Out Frame. Includes all installation
hardware and instructions.
Bulletin: UX1Y
Catalog Number Description
UUGK ULTRX Grounding Device
Keylock Kit and Padlock Kit
Keylock Kit or pushbutton-style Padlock Kit is easily inserted in latch
hole to prevent unauthorized personnel from gaining access to
enclosure contents. Each kit is fully assembled for easy installation in
the eld. Type 316 stainless steel construction.
Bulletin: UX1Y
Catalog Number Description
UUHKL Keylock Kit
UUHPL Padlock Kit
UUHKL: Internal key components are not stainless steel.
UUHPL: Handles maintain UL 508A, Type 3, 4, 4X and 12 when properly installed on a Homan enclosure. Set
up for 1/4-in. or 3/8-in. padlock.
ULTRX® Mounting Bracket Kit
Kit is eld-installable. Corrosion-
resistant berglass material. Type 316
stainless steel mounting hardware
is included. Four mounting brackets
per kit.
Bulletin: UX1Y
Catalog Number Description Kit Qty.
UUMF Mounting Bracket Kit 4
CHS Controls AB
Tel +46 42 38 61 00, Fax +46 42 38 61 29
chs@chscontrols.se www.chscontrols.se

935
Networking: Wall-Mount Cabinets
ULTRX® Fiberglass Type 4X WiFi Cabinet and Accessories
PH (763) 422-2661 • FX (763) 422-2588 • homanonline.com
Subject to change without notice © 2011 Pentair Technical Products
Notes
CHS Controls AB
Tel +46 42 38 61 00, Fax +46 42 38 61 29
chs@chscontrols.se www.chscontrols.se

936
Networking: Wall-Mount Cabinets
Security Wall-Mount and Accessories
PH (763) 422-2661 • FX (763) 422-2588 • homanonline.com
Subject to change without notice © 2011 Pentair Technical Products
Security Wall -Mount an d Accessor ies
Security DVR and 19-in. Rack Equipment Cabinet, Type 1
Industry Standards
UL 508A Listed; Type 1
CSA; Type 1
NEMA/EEMAC; Type 1
IEC 60529 IP20
EIA 310-D (19-in. spacing for rack equipment)
Homan is an ISO 9001 company
Application
These cabinets provide physical protection and access control to
DVR, 19-in. equipment or other equipment. Mount the cabinet
vertically or horizontally on any surface.
Features
• Houses 19-in. or shelf-mount equipment
• Top cover has tool-less removal, is captivated by door and secured
by keylock, providing easy access and installation
• Solid top cover protects equipment from falling debris
• Two standard models are 4 and 6 RU high
• Radius corners give streamlined appearance and eliminate sharp
edges
• Solid front door has 180-degree opening continuous hinge
• Quarter-turn keylock with two keys on door (code 333)
• Vented sides dissipate heat from equipment
• A fan-ready cutout is provided on left side
• 14 gauge steel rack angles are adjustable within the cabinet body
• Rack angle mounting square holes (.375 x .375 in.) with EIA
universal hole spacing (1/4 x 5/8 x 5/8 x 1/4-in.)
• Knockouts on bottom and side for data and power cables
• Rubber feet provide secure placement and prevent scratches
• Fasteners and cage nuts included
Specications
• Doors and body made of 18 gauge steel; top cover is 16 gauge
steel
• Welded steel construction
• One set of rack angles included per EIA standard
• Included installation instructions show optional accessories
Finish
Pretreated steel coated with RAL 9005 black, light-textured, low-gloss
polyester powder paint
Accessories
See also Accessories.
Rack- and Panel-Mount Power Distribution Unit (PDU)
Replacement Keys
Dual Thermostat
VELCRO® Cable Wrap
VELCRO is a trademark of Velcro Industries B.V.
Bulletin: D85, DACCY, DWS1
Standard Product
Catalog Number
AxBxC
in./mm Rack Units (RU)
DVR4U 9.45x21.65x18.35
240x550x466
4
DVR6U 12.99x21.65x18.35
330x550x466
6
General Accessories
Catalog Number Description Key Code
E333KEY 2 replacement keys (ts all locks) 333
A4AXFNGQ Fan, 115 VAC, plus
CHS Controls AB
Tel +46 42 38 61 00, Fax +46 42 38 61 29
chs@chscontrols.se www.chscontrols.se

937
Networking: Wall-Mount Cabinets
Security Wall-Mount and Accessories
PH (763) 422-2661 • FX (763) 422-2588 • homanonline.com
Subject to change without notice © 2011 Pentair Technical Products
CHS Controls AB
Tel +46 42 38 61 00, Fax +46 42 38 61 29
chs@chscontrols.se www.chscontrols.se

938
Networking: Wall-Mount Cabinets
Security Wall-Mount and Accessories
PH (763) 422-2661 • FX (763) 422-2588 • homanonline.com
Subject to change without notice © 2011 Pentair Technical Products
19-in. Electronic Case, Type 1
Industry Standards
NEMA Type 1
EIA 310-D / IEC 297-1
IEC 60529, IP20
Application
Primarily used to house lab electronics, lightweight Electronic
Cases accommodate 19-in. sub-racks, chassis and panels in a rigid
ventilated case with integral handles.
Features
• Aluminum extrusions attach to front and rear frames to create a
rigid supporting framework
• Sides on 3U and 4U tall cases are aluminum extrusions with
integral carrying handle. 6U tall cases have steel (1.5-mm) sides
with recessed handles. 9U and 12U tall cases have 1.5-mm
aluminum sides with recessed handles.
• Removable top and bottom covers attach directly to the case
framework
• Bottom cover has multiple rows of slots for ventilation
• Rear cover has ventilation louvers
•
Covers are 1-mm steel on 3U, 4U, 6U tall cases and 1-mm aluminum
on 9U and 12U tall cases. Covers include grounding provisions.
• Case framework is assembled with rear cover installed
•
Top cover, bottom cover, anti-skid feet and mounting hardware are
included
• Optional tip-up foot kit, equipment guides and cage nuts are
available
Specications
• One piece aluminum die-cast frame on front and rear
• 19-in. rack-mounting provisions on both front and rear frame
comply with EIA 310-D / IEC 297-1 wide spacing
• 9-mm square holes accommodate cage nuts for mounting
Finish
Framework and rear cover have a stone-gray textured nish (RAL
7030). Top and bottom covers and metal sides have a light-gray
textured nish (RAL 7035).
Accessories
Hardware Kits
Slide Rails
Tip-Up Foot Kit
Bulletin: DEC1
Standard Product
Catalog Number AxBxC mm AxBxC in. F (mm) F (in.)
EEC3U5250 166 x 520 x 500 6.50 x 20.50 x 19.70 133 5.24
EEC4U5250 210 x 520 x 500 8.30 x 20.50 x 19.70 178 7.01
EEC6U5260 299 x 520 x 600 11.80 x 20.50 x 23.60 267 10.51
EEC9U5260 433 x 520 x 600 17.00 x 20.50 x 23.60 400 15.75
EEC12U5260 566 x 520 x 600 22.30 x 20.50 x 23.60 533 20.98
CHS Controls AB
Tel +46 42 38 61 00, Fax +46 42 38 61 29
chs@chscontrols.se www.chscontrols.se

939
Networking: Wall-Mount Cabinets
Security Wall-Mount and Accessories
PH (763) 422-2661 • FX (763) 422-2588 • homanonline.com
Subject to change without notice © 2011 Pentair Technical Products
Tip-Up Foot Kit for Electronic Case
Tip-up feet can be mounted on
the bottom cover to provide an
improved viewing angle for rack
mounted equipment installed in an
electronic case. In tip-up position,
front of case is raised 1.38 in. (35
mm). Feet attach to holes provided
in the bottom cover and include an
anti-skid rubber insert. Feet are gray
plastic.
Bulletin: DEC1
Catalog Number Description Kit Includes
EECFTP Tip-Up Foot Kit 2 tip-up feet, 2 standard feet and mounting hardware
Slide Rails for Electronic Case
Slide Rails support a 19-in. subrack or chassis when installed in
an electronic case. Rails attach to protrusions on the inside front
and back castings of the case framework. They are positionable in
increments of 1.75 in. (44 mm) vertically. Slide rails are aluminum
extrusions with a clear anodized nish. They snap into place; no
mounting hardware is required.
Bulletin: DEC1
Catalog Number Fits Case Package Includes
EECCR50 500-mm deep 1 rail
EECCR60 600-mm deep 1 rail
Hardware Kits for Electronic Case
Use to mount Electronic Case on rack angles with 9-mm square holes.
Bulletin: DACCY, P20, X20
Catalog Number Description Package Includes Package Qty.
ECNSM6 M6 fastener package Pan head Posidrive plated M6 x 16 screws, ABS black plastic cup washers and plated cage nuts 8
PM5CN M5 cage nut package M5 plated cage nuts 50
ASM5 M5 screw package Pan head combination screws 20
CHS Controls AB
Tel +46 42 38 61 00, Fax +46 42 38 61 29
chs@chscontrols.se www.chscontrols.se

940
Networking: Wall-Mount Cabinets
19-in. Rack-Mount/Desktop Case and Accessories
PH (763) 422-2661 • FX (763) 422-2588 • homanonline.com
Subject to change without notice © 2011 Pentair Technical Products
19-in. Rack-M ount/Des ktop Case an d Accessor ies
19-in. Rack-Mount/Desktop Case, Type 1
Industry Standards
NEMA Type 1
IEC 60529, IP20
Exterior Dimensions
EIA 310-D / IEC 297-1
DIN 41494 Part 1
Application
Desktop cases house circuit boards and other electronic equipment
in a rigid framework with easy front and rear access. Rack cases are
19-in. rack mountable with integral mounting provided in the front
bezel.
Features
• Removable top and bottom covers attach directly to case
framework for maintenance convenience
• Bottom cover has multiple rows of holes for ventilation
• Front bezel includes mounting provisions for 19-in. rack mounting
as well as mounting for front panel options for application
exibility
• Top and bottom of framework have mounting provisions for
optional support rails for application exibility. Mounting holes are
spaced on 10-mm centers front to back.
• Case framework is assembled for quick installation. Top cover,
bottom cover, anti-skid feet and mounting hardware are included.
• Mounting hardware for optional front and rear panels are included
with case for installation convenience
Specications
• One-piece aluminum die cast front bezel and rear bezel are
connected front-to-back with aluminum extrusions to form a rigid
structural framework
• Sides on 3U- and 4U-tall cases are the aluminum front-to-back
extrusions. The 6U-tall case has two aluminum extrusions with a
steel middle panel on each side.
• Covers are 1-mm steel and have grounding provisions
Finish
Framework has an RAL 7030 stone-gray textured nish. Top and
bottom covers have an RAL 7035 light-gray textured nish on the
outside and a plated nish on the inside.
Bulletin: DEC1
Standard Product
Catalog Number AxBxC mm/in.
E
mm/in.
F
mm/in.
G
mm/in.
H
mm/in. Rack Units
ERC3U4837 133 x 483 x 375
5.20 x 19.00 x 14.80
131
5.14
103
4.04
57
2.25
110
4.33
3
ERC4U4843 177 x 483 x 435
7.00 x 19.00 x 17.10
175
6.89
147
5.77
102
4.00
155
6.08
4
ERC6U4843 266 x 483 x 435
10.50 x 19.00 x 17.10
264
10.39
235
9.27
190
7.50
243
9.58
6
CHS Controls AB
Tel +46 42 38 61 00, Fax +46 42 38 61 29
chs@chscontrols.se www.chscontrols.se

941
Networking: Wall-Mount Cabinets
19-in. Rack-Mount/Desktop Case and Accessories
PH (763) 422-2661 • FX (763) 422-2588 • homanonline.com
Subject to change without notice © 2011 Pentair Technical Products
Front Panels
Blank front panel provides a means to close front or rear of a desktop
case. The smooth anodized surface is ideal for mounting controls or
meters, etc. The front panel is 2.5-mm thick and ts into the 6-mm
(0.24-in.) recess on front (or rear) of the case. Hardware to mount
front panel is furnished with case.
Bulletin: DEC1
Catalog Number
D
mm/in.
H
mm/in.
ERCFP3U48 120.5
4.74
110.0
4.33
ERCFP4U48 165.0
6.50
154.5
6.08
ERCFP6U48 253.8
9.99
243.4
9.58
Rear Panels
Rear panels are 2.5-mm thick anodized aluminum. They include a row
of ventilation slots (vertical) along the upper edge of panel. 6U covers
have two rows of slots. Hardware to mount rear panel is furnished
with case.
Bulletin: DEC1
Catalog Number
D
mm/in.
H
mm/in.
J
mm/in.
ERCRP3U48 121
4.74
110
4.33
25
.98
ERCRP4U48 165
6.50
155
6.08
25
.98
ERCRP6U48 254
9.99
243
9.58
25
.98
Front Handles
Handles facilitate movement of the desktop case and installation
of the case in a 19-in. rack. They are mounted to the rack-mounting
anges on the 19-in. front bezel. Front bezels have holes partially
drilled and countersunk for location and must be drilled through
before handle installation. Handles are die-cast aluminum and
nished in light-gray (RAL 7030). Package includes two handles with
necessary mounting hardware.
Bulletin: DEC1
Catalog Number
ERCFH3U
ERCFH4U
ERCFH6U
CHS Controls AB
Tel +46 42 38 61 00, Fax +46 42 38 61 29
chs@chscontrols.se www.chscontrols.se

942
Networking: Wall-Mount Cabinets
19-in. Rack-Mount/Desktop Case and Accessories
PH (763) 422-2661 • FX (763) 422-2588 • homanonline.com
Subject to change without notice © 2011 Pentair Technical Products
Support Rail Kit
Support rails are recommended for mounting and supporting the
weight of bulky components inside a desktop case. Support rails have
mounting holes and rectangular slots for mounting components.
Rails are 1.5-mm steel with a plated nish. M4 nuts are welded to
the rail ends for easy attachment to the case. Mounting holes in
the desktop case are spaced on 10-mm centers from front to back,
allowing a variety of positions for support rails. Support rail kit
includes front rail, rear rail and mounting hardware.
Bulletin: DEC1
Catalog Number Kit Includes
ERCRF48 1 front rail, 1 rear rail and mounting hardware
CHS Controls AB
Tel +46 42 38 61 00, Fax +46 42 38 61 29
chs@chscontrols.se www.chscontrols.se

943
Networking: Wall-Mount Cabinets
19-in. Rack-Mount/Desktop Case and Accessories
PH (763) 422-2661 • FX (763) 422-2588 • homanonline.com
Subject to change without notice © 2011 Pentair Technical Products
Notes
CHS Controls AB
Tel +46 42 38 61 00, Fax +46 42 38 61 29
chs@chscontrols.se www.chscontrols.se