700058 Spec Sheet
2017-04-29
: Pdf 700058 Spec-Sheet 700058_Spec-Sheet product s
Open the PDF directly: View PDF
.
Page Count: 2

CoolingPerformance
Totalcapacity 118.0 MBH
Sensiblecapacity 78.8 MBH
Efficiency(atARI) 11.20 EER
Integratedeff.(atARI) 11.40 IEER
AmbientDBtemp. 95.0 °F
EnteringDBtemp. 80.0 °F
EnteringWBtemp. 67.0 °F
LeavingDBtemp. 55.7 °F
LeavingWBtemp. 54.2 °F
Powerinput(w/oblower) 9.18 kW
Soundpower 83 dB(A)
Refrigerant
Refrigeranttype R-410A
ReheatPerformance
Totalcapacity 52.7 MBH
Sensiblecapacity 1.6 MBH
AmbientDBtemp. 85 °F
EnteringDBtemp. 75 °F
EnteringWBtemp. 67 °F
LeavingDBtemp. 74.5 °F
LeavingWBtemp. 61.8 °F
Powerinput(w/oblower) 8.13 kW
Gallonsofwaterperhour 5.83 gal/hr
HeatingPerformance
EnteringDBtemp. 60 °F
Heatingoutputcapacity(Max) 87 MBH
Nominalelectricheat 36 kW
Appliedelectricheat 25.5 kW
Installed Factory
Supplyair 3000 CFM
LeavingDBtemp. 86.9 °F
Airtemp.rise 26.9 °F
Stages 2
SupplyAirBlowerPerformance
Supplyair 3000 CFM
Ext.staticpressure 0.6 IWG
Addl.UnitLosses(Options/Accessories) 0.02 IWG
Blowerspeed 914 RPM
MaxBHPofMotor(includingservicefactor) 3.45 HP
Ductlocation Bottom
Motorrating 3.00 HP
ActualrequiredBHP 1.52 HP
Powerinput 1.42 kW
Elevation 0 ft.
Drivetype BELT
ElectricalData
Powersupply 208-3-60
Unitmincircuitampacity 100.5 Amps
Unitmaxover-currentprotection 110 Amps
Dimensions&Weight
Hgt 51 in. Len 89 in. Wth 59 in.
Weightwithfactoryinstalledoptions 1245 lbs.
Clearances
Right 12 in. Front 36 in. Back 36 in.
Top 72 in. Bottom 0 in. Left 36 in.
Note:Pleaserefertothetechguideforlistedmaximumstaticpressures
10Ton
•DriFectaunitsaremanufacturedatanISO9001registeredfacilityandeach
rooftopiscompletelycomputer-runtestedpriortoshipment.
UnitFeatures
•UnitCabinetConstructedofPowderPaintedSteel,CertifiedAt1000Hours
SaltSprayTest(ASTMB-117Standards)
•Through-the-CurbandThrough-the-BaseUtilityConnections
•Eithersupplyand/orreturncanbefieldconvertedfromverticaltohorizontal
configurationwithoutcuttingpanels.
•Fullperimeterbaserailswithbuiltinriggingcapabilities
•HingedAccessPanels
•StandardCabinetwithCompositeDrainPan
•ScrollCompressors
•TwoStageCooling
•SolidCoreLiquidLineFilterDriers
•MicrochannelCondenserCoil
•StandardEvaporatorCoil
•36kWFactoryInstalledElectricHeat
•Slide-outBlower/3HPBeltDriveMotorAssembly
•UnitShipswith2"ThrowawayFilterswithaStandardFilterRackthatwill
Acceptupto4"Filters
•ReplacementFilters:4-(24"x20").Unitaccepts2"or4"widefilters.
•SinglePointPowerConnection
•ShortCircuitCurrent:5kARMSSymmetrical
StandardUnitController:SimplicityControlBoard
•AnIntegratedLow-AmbientControl,Anti-ShortCycleProtection,Lead-Lag,
FanOnandFanoffDelays,LowVoltageProtection,On-BoardDiagnostic
andFaultCodeDisplay.Allowsallunitstooperateinthecoolingmodedown
to0°Foutdoorambientwithout
•SafetyMonitoring-Monitorsthehighandlow-pressureswitches,the
freezestats,thegasvalve,ifapplicable,andthetemperaturelimitswitchon
gasandelectricheatunits.Theunitcontrolboardwillalarmonignition
failures,safetylockoutsandre
Warranty
•One(1)YearLimitedWarrantyontheCompleteUnit
•Five(5)YearWarranty-CompressorsandElectricHeaterElements
Informationissubjecttochangewithoutnotice.Checklocalcodes.
UnitPart # 700058
10Ton Electric Electric

ConsolidatedDrawing
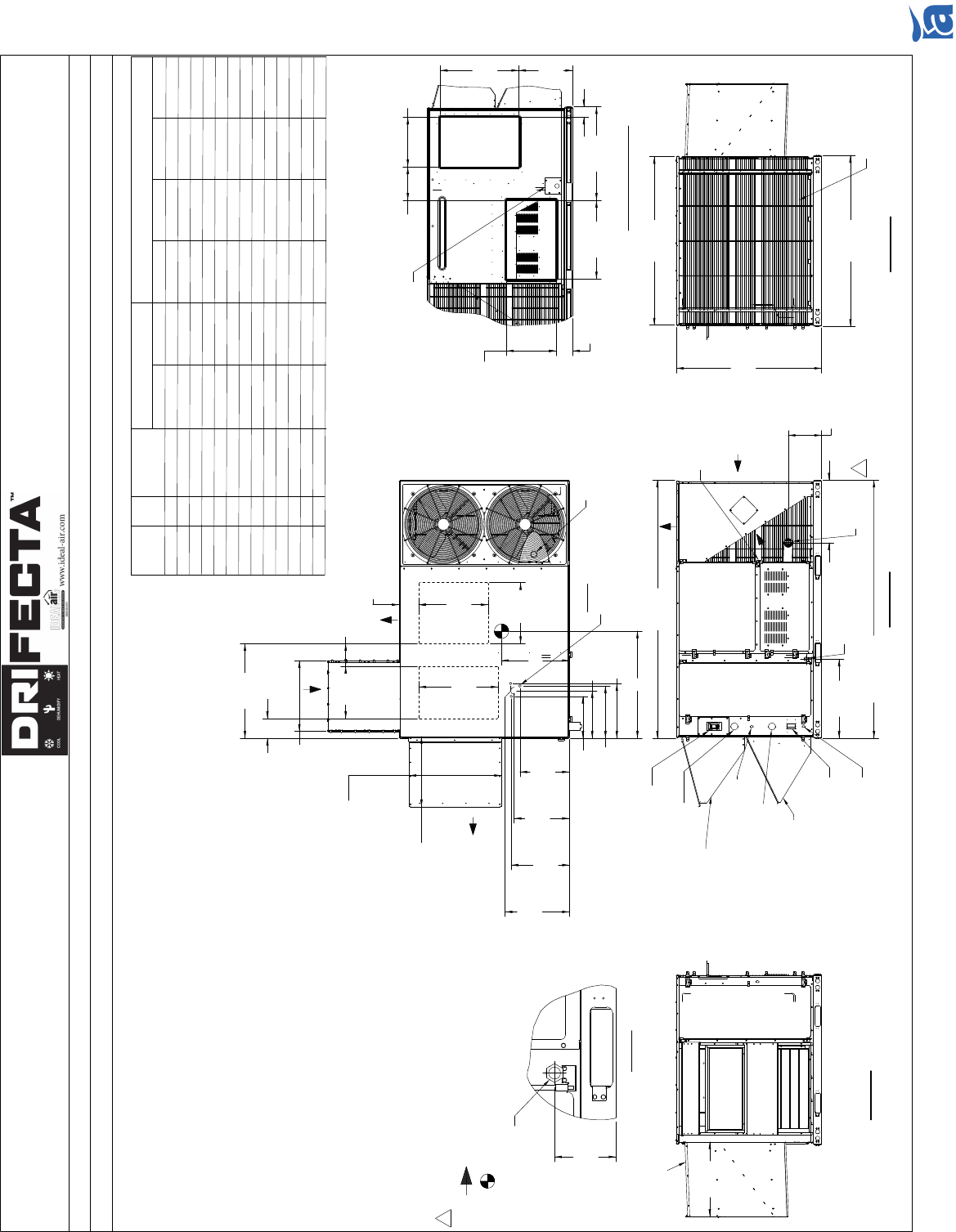
DETAIL A
3/4" FPT
5.32
[135]
DIRECTION OF AIRFLOW
CENTER OF GRAVITY
NOTES:
1. FOR OUTDOOR USE ONLY.
2. WEIGHTS SHOWN ARE FOR COOLING ONLY UNITS.
3. MIN. CLEARANCES TO BE:
RIGHT SIDE: 12 [305]
LEFT SIDE: 36 [915]
FRONT: 36 [915]
REAR: 36 [915]
TOP: 72 [1830]
BOTTOM: 0 [0]
4. TO REMOVE THE SLIDE-OUT DRAIN PAN, A REAR CLEARANCE OF
60 in (1525 mm) IS REQUIRED. IF SPACE IS UNAVAILABLE, THE
DRAIN PAN CAN BE REMOVED THROUGH THE FRONT BY SEPARATING
THE CORNER WALL.
5. FOR SMALLER SERVICE AND OPERATIONAL CLEARANCES
CONTACT YOUR APPLICATION ENGINEERING DEPARTMENT.
6. DOWNFLOW DUCTS DESIGNED TO BE ATTACHED TO ACCESSORY
ROOF CURB ONLY. IF UNIT IS MOUNTED SIDE SUPPLY, IT
IS RECOMMENDED THAT THE DUCTS ARE SUPPORTED BY
CROSS BRACES, AS DONE ON ACCESSORY ROOF CURBS.
7. SIDE DUCT FLANGES ARE 0.75" HIGH.
BOTTOM DUCTS DO NOT HAVE FLANGES.
8. MINIMUM CONDENSATION TRAP HEIGHT SHALL BE 1.5 TIMES
THE LOWEST NEGATIVE STATIC.
9. DIMENSIONS IN [ ] ARE IN MILLIMETERS OR KILOGRAMS.
10. OPTIONAL COIL GUARDS, POWER EXHAUST, GAS HEAT,
ECONOMIZER, DISCONNECT SWITCH, CONVENIENCE OUTLET,
AND BAROMETRIC RELIEF AND FRESH AIR HOODS SHOWN.
11
TONNAGE
UNIT
OPERATING
WEIGHT (LBS)
(BASE UNIT)
CENTER OF GRAVITY
LOCATION (BASE UNIT) 4 POINT CORNER LOADS (LBS) (BASE UNIT)
X Y A B C D
8.5 1007 [458] 38 [965] 24 [610] 235 [107] 175 [79] 255 [116] 342 [155]
10 1103 [501] 38 [965] 24 [610] 257 [117] 192 [87] 279 [127] 375 [170]
8.5 1030 [467] 38 [965] 24 [610] 240 [109] 179 [81] 261 [118] 350 [159]
10 1090 [494] 38 [965] 24 [610] 254 [115] 189 [86] 276 [125] 371 [168]
6.5 1030 [467] 39 [991] 25 [635] 245 [111] 191 [87] 260 [118] 333 [151]
7.5 1050 [476] 39 [991] 25 [635] 250 [113] 195 [89] 265 [120] 340 [154]
8.5 1060 [481] 38 [965] 24 [610] 247 [112] 184 [84] 268 [122] 360 [163]
10 1070 [485] 39 [991] 24 [610] 245 [111] 191 [87] 278 [126] 357 [162]
8.5 & 10 1200 [544] 38 [965] 25.5 [648] 297 [135] 221 [100] 291 [132] 390 [177]
6.5 1080 [490] 38 [965] 25 [635] 262 [119] 195 [89] 266 [121] 357 [162]
7.5 1090 [494] 38 [965] 23 [584] 243 [110] 181 [82] 284 [129] 381 [173]
8.5 1137 [516] 38 [965] 25.5 [648] 282 [128] 210 [95] 276 [125] 370 [168]
10 1135 [515] 38 [965] 25.5 [648] 281 [127] 209 [95] 275 [125] 369 [167]
ZF
ZF
ZH
ZH
ZJ
ZJ
ZJ
ZJ
ZR
XP
XP
XP
XP
EXCEPT XP (HEAT PUMP) UNITS.
LEFT VIEW
OUTSIDE AIR
INTAKE HOOD
(OPTIONAL)
CTL PANEL/
COMPRESSOR
ACCESS
25.72
[653]
COIL GUARD
(OPTIONAL)
RIGHT VIEW
59.00
[1499]
50.75
[1289]
58.09
[1475]
ALTERNATE CONDENSATION DRAIN
SUPPLY
R
E
T
U
R
N
REAR (PARTIAL VIEW)
(INTAKE HOOD NOT SHOWN IN THIS VIEW)
18.25
[464]
2.88
[73]
31.63
[803]
28.25
[718]
18.25
[464]
5.16
[131]
18.06
[459]
28.25
[718]
10.50
[267]
2.00 [51]
BOTTOM ENTRY:
POWER 2.50 [64]
CONTROL 3X 0.875 [22]
ɸɸ BOTTOM GAS
SUPPLY ENTRY
R
E
T
U
R
N
S
U
P
P
L
Y
AB
C
D
LEFT RIGHT
FRONT
TOP VIEW
24.38
[619]
18.00
[457]
27.50
[699]
21.00
[533]
24.00
[610]
14.47
[368] 16.39
[416]
18.06
[459] 18.89
[480]
17.14
[435]
19.14
[486]
20.14
[512]
20.39
[518]
7.84
[199]
6.83
[173]
32.67
[830]
6.83
[173]
Y
X
32.06
[814]
24.24
[616]
(FROM MTB.
FLANGE)
ɸ
ɸ
ɸ
11
FRONT VIEW
(OPTIONAL FRONT COIL GUARD NOT SHOWN IN THIS VIEW)
DISCONNECT SWITCH COVER
(OPTIONAL)
POWER ENTRY 2.50 [64]
CONTROL ENTRY 0.875 [ 22]
POWER ENTRY 2.50 [64]
CONVENIENCE OUTLET COVER
(OPTIONAL)
CONVENIENCE OUTLET
POWER ENTRY 0.875 [22]
GAS INLET
BAROMETRIC RELIEF HOOD/
POWER EXHAUST (OPTIONAL)
SEE DETAIL A FOR
DRAIN LOCATION EXHAUST
FLUE
FILTER/
COMPRESSOR
ACCESS
BLOWER ACCESS
FRESH AIR HOOD/
ECONOMIZER(OPTIONAL)
89.00 [2261]
27.31
[694]
11.38
[289]
21.19
[538]
89.00
[2261]
ɸ
ɸ
ɸ
Informationissubjecttochangewithoutnotice.Checklocalcodes.
UnitPart # 700058
10Ton Electric Electric