Installation Directions
2014-07-05
: Pdf 90052-Installationsheet 90052-InstallationSheet 639889 Batch5 unilog
Open the PDF directly: View PDF
.
Page Count: 28

Drehzahlregler
Speed control
Régulateur
de vitesse de rotation
Toerenregelaar
Varvtalsreglering
Regolatore di giri
Regulador de velocidad
回転数コントローラ
Rittal
SK
SK 3120.200
468 931 003 508
Montageanleitung
Assembly instructions
Notice d'emploi
Montage-instructie
Montageanvisning
Istruzioni di montaggio
Instrucciones de montaje
取扱説明書
468 931 003 508

Inhalt
1. Anwendung
2. Montage
3. Funktionsbeschreibung
3.1 Drehzahlregelung
3.2 Minimaldrehzahl
3.3 Überwachung / Störung
3.4 LEDs
3.5 Fernfühler
4. Anschluss
5. Technische Daten
6. Sicherheitshinweise
7. Lieferumfang
8. Garantie
1 Anwendung
Der SK 3120.200 ist ein unabhängig mon tier -
barer, elektronischer Drehzahlregler für 2-polige
Einphasenwechselstrom-Motoren.
Dieses Gerät darf nur in einem Schaltschrank
eingebaut werden. Durch den Drehzahlregler wird
die Innentemperatur des Schaltschrankes auf die
eingestellte Temperatur geregelt. Bei Verwen-
dung dieses Gerätes wird eine wesentliche
Minderung der Lüftergeräusche erzielt. Die
Lüfter drehzahl wird so geregelt, dass der Schalt-
schrank gekühlt wird (kalte Zuluft vorausgesetzt).
Damit ergibt sich auch ein reduzierter Energie -
bedarf. Der Drehzahlregler ist besonders für die
Rittal Filterlüfter und Luft/Luft-Wärmetauscher
geeignet.
2 Montage
Das Gerät kann einfach auf der 35 mm Trag-
schiene (EN 50 022) aufgerastet werden.
3 Funktionsbeschreibung
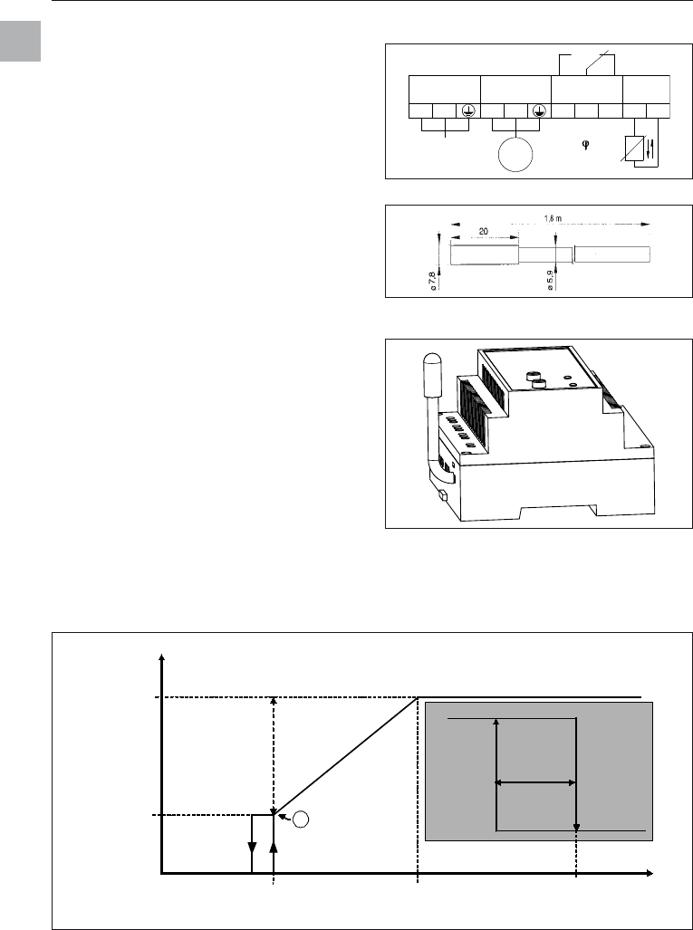
3.1 Drehzahlregelung (P1)
Die Schaltschranktemperatur wird auf die am
Potenziometer P1 eingestellte Temperatur reduziert
(kalte Zuluft vorausgesetzt). Die Temperatur wird
über den Fernfühler gemessen.
Bei Erreichen des eingestellten Sollwertes läuft
der Lüfter mit einer Drehzahl von 100%, siehe
Diagramm. Innerhalb des Proportionalbereiches
von 10 K erfolgt eine stufenlose Regelung der
Drehzahl. Bei fallender Temperatur wird der Lüfter
bei 13 K unter dem Sollwert abgeschaltet. Der
Lüfter startet wieder bei 10 K unter Sollwert. Beim
Einschalten des Lüfters wird dieser mit einem
Anlauf impuls gestartet.
3.2 Minimaldrehzahl (P2)
Nach Erreichen der Minimaldrehzahl schaltet der
Lüfter ab. Die Einstellung erfolgt in % bezogen
auf die maximale Drehzahl. Es muss sicherge-
stellt werden, dass der Lüfter auch bei der Mini-
maldrehzahl noch sicher läuft (siehe Hersteller -
angaben bei Fremdlüftern). Wir empfehlen bei
unseren Filterlüftern der Serie SK 3321.xxx –
SK 3327.xxx eine Minimal drehzahl von ~40 %.
Einstellung:
P2 auf 100 % stellen, P1 auf 55 °C
P1 so weit reduzieren, bis der Lüfter läuft
P2 auf die gewünschte minimale Drehzahl
stellen
Nun kann P1 auf die gewünschte Temperatur
gestellt werden.
Hinweis: Bei Minimaldrehzahl = 100% läuft der
Lüfter immer mit maximaler Geschwindigkeit
(keine Regelung).
3.3 Überwachung / Störung
Im Normalbetrieb ist beim Alarmrelais Kontakt
5-4 offen.
Übertemperatur:
Bei einer gemessenen Temperatur von mehr als
10 K über dem eingestellten Sollwert spricht die
Temperaturüberwachung an, siehe Diagramm.
Die rote LED blinkt 1x.
Das Störmelderelais fällt ab (Klemmen 5-4
geschlossen).
Leitungsunterbrechung zum Lüfter:
Die rote LED blinkt 2x.
Das Störmelderelais fällt ab (Klemmen 5-4
geschlossen).
Fühlerbruch / Kurzschluss:
In diesem Fall läuft der Lüfter mit voller Drehzahl.
Die rote LED blinkt 3x.
Das Störmelderelais fällt ab (Klemmen 5-4
geschlossen).
1 Anwendung
DE
3
468 931 003 508 D

4 Anschluss
Spannungsausfall
(Regler ohne Spannung):
Das Störmelderelais fällt ab (Klemmen 5-4
geschlossen).
3.4 LEDs
Grün = Betriebsspannung vorhanden
Rot = Störung, siehe 3.3
3.5 Fernfühler
Der Fernfühler kann mit einer 2-adrigen Leitung
geeignet für 230 V bis ca. 50 m verlängert
werden, Kürzen ist möglich. Enge Parallelführung
mit Netzleitungen ist zu vermeiden.
4 Anschluss
Maße des Fühlers
Montage mit gekürztem Fühler
12
NL3
45
Sensor
Fan Alarm
M
1~
cos =1
Imax. = 5A
NL
Power
85-253V AC
Imax. 2A
Temperatur
Drehzahl
Minimaldrehzahl
SollwertSollwert
–10K
100%
Sollwert
+10 K
Lüfter
Drehzahl
Alarmrelais
5-4
offen
Alarmrelais
5-4
geschlossen
5K
3K
Minimaldrehzahl
verschiebt Punkt
A auf dieser Linie
A
DE
4

DE
5 Technische Daten
5 Technische Daten
6 Sicherheitshinweise
- Nur in einem geschlossenen Schaltschrank
einsetzen.
- Beim Einbau des Gerätes Sicherheitsmaß -
nahmen nach EN 60 335 beachten.
- Schutzklasse || wird nur durch fachgerechten
Einbau erreicht.
- Allgemeine Sicherheitsvorschriften und -bestim-
mungen beachten.
- Betriebsanweisungen beachten.
- Sicherheitshinweise der Schaltschrank in stalla -
tion beachten.
- Arbeiten dürfen nur durch autorisiertes Fach-
personal durchgeführt werden.
- Bei Veränderungen am oder im Schaltschrank
(z. B. anderer Aufstellungsort oder neuer
Bauteileeinbau) vorher unbedingt die Rittal
Montageanleitung (Anlagendokumentation)
lesen und beachten.
- Vor jedem Öffnen des Gerätes, dieses
spannungsfrei schalten und gegen unbeab -
sichtigtes Wiedereinschalten sichern.
- Änderungen an den eingestellten Werten des
Gerätes dürfen nur Personen vornehmen, die
dazu berechtigt und eingewiesen sind.
- Fühler nicht parallel zu anderen Leitungen
verlegen.
Einstrahlungen können zu Störungen des
Reglers führen.
- Unbedingt Minimaldrehzahl mit P2 so einstellen,
dass der Lüfter unter allen Bedingungen, wie
z. B. Unterspannung, max. Temperatur usw.
sicher läuft.
- Den Betriebstemperaturbereich beachten (siehe
„5 Technische Daten“).
7 Lieferumfang
1 Drehzahlregler
1 Fernfühler
1 Montageanleitung
8 Garantie
Auf dieses Gerät gewähren wir 1 Jahr Garantie
bei fachgerechter Anwendung vom Tage der
Lieferung an.
Bei unsachgemäßer Anwendung oder Anschluss
erlischt die Gewährleistung des Herstellers. Für
die in solchem Fall entstandenen Schäden wird
nicht gehaftet.
5
Best.-Nr. SK 3120.200
Betriebsspannung
100...230 V AC, 50/60 Hz
Einstellbereich
Temperatur (P1) 20…55 °C
Einstellbereich
Minimaldrehzahl (P2) 40…100 %
Lüfterdrehzahl min. Drehzahl … 100%
Temperaturfühler Länge 1,80 m
max. Lüfterleistung 200 W
Schaltstrom max. 2A
Regelung Phasenanschnitt
Alarm
Relais, Wechsler 5A,
cos = 1
(nicht geeignet für SELV)
Ausgang,
Wirkungsweise Typ 1Y
Softwareklasse A
Verschmutzungsgrad 2
Bemessungs-
stoßspannung 4 kV
Temperatur der
Kugeldruckprüfung 75 °C
Spannung und
Strom für
EMV-Prüfung
230 V 0,1 A
Schutzart IP 20
Betriebstemperatur 0 °C bis +55 °C
Lagerungstemperatur –30 °C bis +70 °C
Anschluss
Schraubklemmen
ein- oder mehrdrähtig
0,75…1,5 mm2
Montage
auf Tragschiene 35 mm
EN 50 022
Gehäuse
Polycarbonat, UL 94 V-0
Abmessungen B x H x T:
105 x 90,5 x 60,2

EN
6
468 931 003 508-a GB
Contents
1. Application
2. Assembly
3. Functional description
3.1 Speed control
3.2 Minimum speed
3.3 Monitoring / malfunctions
3.4 LEDs
3.5 Remote sensor
4. Connection
5. Technical specifications
6. Safety instructions
7. Supply includes
8. Guarantee
1 Application
The SK 3120.200 is an electronic speed control
for 2-pole single-phase AC motors which may be
fitted independently.
This device may only be installed in an enclosure.
The speed control reduces the internal tempera-
ture of the enclosure to the set temperature. By
using this device, a significant reduction in fan
noise can be achieved. The fan speed is con-
trolled in a way which cools the enclosure
(assuming there is a supply of cold intake air).
This in turn leads to a reduced energy require-
ment. The speed control is particularly well-suited
to Rittal fan-and- filter units and air/air heat
exchangers.
2 Assembly
The device is simply snap-mounted onto the
35 mm support rail (EN 50 022).
3 Functional description
3.1 Speed control (P1)
The enclosure temperature is reduced to the
temperature set on the potentiometer P1 (assum-
ing a supply of cold intake air). The temperature
is measured via the remote sensor.
Upon reaching the set value, the fan operates at
a speed of 100 % (see diagram). Within the pro-
portional range of 10 K, speed control is linear. If
the temperature drops, the fan is deactivated at
13 K below the set value. The fan cuts back in at
10 K below the set value. When the fan is
switched on, it is activated with a start-up pulse.
3.2 Minimum speed (P2)
Upon reaching the minimum speed, the fan will
cut out. The setting is made as a percentage of
the maximum speed. It is important to ensure
that the fan still operates safely at the minimum
speed (refer to manufacturer's instructions in the
case of third-party fans).
With our fan-and-filter units from series
SK 3321.xxx − SK 3327.xxx, we recommend a
minimum speed of approximately 40%.
Setting:
Set P2 to 100 %, P1 to 55 °C
Reduce P1 until the fan starts running
Set P2 to the required minimum speed
P1 can now be set to the required temperature.
Note: If the minimum speed = 100 %, the fan will
always run at maximum speed (no control).
3.3 Monitoring / malfunctions
In normal operation, contact 5-4 of the alarm
relay is open.
Overtemperature:
At a measured temperature of more than 10K
above the set value, temperature monitoring will
cut in – see diagram.
The red LED will flash once.
The fault signal relay will drop out (terminal
5-4 closed).
Interruption in the cable to the fan:
The red LED will flash twice.
The fault signal relay will drop out (terminal
5-4 closed).
Sensor failure/ short-circuit:
In this case, the fan is operating at full speed.
The red LED will flash three times.
The fault signal relay will drop out (terminal
5-4 closed).
Voltage failure
(controller de-energised):
The fault signal relay will drop out (terminal
5-4 closed).
3.4 LEDs
Green = operating voltage present
Red = malfunction, see 3.3
1 Application

EN
7
3.5 Remote sensor
The remote sensor may be extended up to ap-
prox. 50m with a 2-wire cable suitable for 230 V;
shortening is also possible. Close routing parallel
to power cables should be avoided.
4 Connection
Dimensions of sensor
Installation with shortened sensor
12
NL3
45
Sensor
Fan Alarm
M
1~
cos =1
Imax. = 5A
NL
Power
85-253V AC
Imax. 2A
Temperature
Speed
Minimum
speed
SetpointSetpoint
–10K
100%
Setpoint
+10 K
Fan speed
Alarm relay
5-4 open
Alarm relay
5-4 closed
5K
3K A
Minimum speed
displaces point A
along this line
4 Connection

EN
8
5 Technical specifications 6 Safety instructions
- Only use in a sealed enclosure.
- When installing the device, observe the safety
measures to EN 60 335.
- Protection category II can only be achieved with
professional installation.
- Observe the general safety provisions and reg-
ulations.
- Observe the operating instructions.
- Observe the safety instructions for enclosure in-
stallation.
- The work must only be carried out by trained,
authorised personnel.
- Before making any changes to or in the
enclosure (e.g. a different installation site or in-
stallation of new components), it is vital to read
the Rittal assembly instructions (plant docu-
mentation).
- Each time before opening the device,
disconnect it from the power supply and secure
it against being switched back on unintention-
ally.
- Changes to the set values of the device may be
made only by properly trained, authorised indi-
viduals.
- Do not lay sensors parallel to other cables. In-
terference may lead to malfunctions in the con-
troller.
- It is essential to set the minimum speed with P2
in a way which ensures that the fan will operate
safely under all conditions, such as undervolt-
age, max. temperature etc.
- Observe the operating temperature range (see
"5 Technical specifications").
7 Supply includes
1 speed control
1 remote sensor
1 set of assembly instructions
8 Guarantee
This unit is covered by a 1-year guarantee from
the date of supply, subject to correct use.
In the case of incorrect use or connection, the
guarantee of the manufacturer expires. No liability
is accepted for damage arising in such cases.
Model No. SK 3120.200
Operating voltage
100...230 V AC, 50/60 Hz
Setting range,
temperature (P1) 20…55 °C
Setting range,
minimum speed (P2) 40…100 %
Fan speed min. speed … 100 %
Temperature sensor Length 1.80 m
Max. fan output 200 W
Switched current max. 2 A
Controller Phase cross-over
Alarm
Relay, change-over
contact 5 A, cos = 1
(not suitable for SELV)
Output,
mode of operation Type 1Y
Software category A
Level of contamination
2
Rated surge
voltage 4 kV
Temperature of
ball pressure test 75 °C
Voltage and
amperage of
EMC testing
230 V 0.1 A
Protection category IP 20
Operating temperature 0°C to +55 °C
Storage temperature –30 °C to +70 °C
Connection
Screw terminals
single or multi-wire
0.75…1.5 mm2
Mounting
on support rail 35 mm
EN 50 022
Enclosure
Polycarbonate, UL 94 V-0
Dimensions W x H x D:
105 x 90.5 x 60.2
5 Technical specifications
468 931 003 508 F

F
9
Sommaire
1. Application
2. Montage
3. Description fonctionnelle
3.1 Réglage de la vitesse de rotation
3.2 Vitesse de rotation minimale
3.3 Surveillance / Défaut
3.4 Diodes
3.5 Capteur à distance
4. Raccordement
5. Caractéristiques techniques
6. Consignes de sécurité
7. Composition de la livraison
8. Garantie
1 Application
SK 3120.200 est un régulateur de vitesse de
rotation électronique autonome, conçu pour les
moteurs bipolaires à courant alternatif mono-
phasé. Cet appareil doit toujours être intégré
dans une armoire électrique. Le régulateur de
vitesse de rotation sert à abaisser la température
intérieure de l'armoire électrique jusqu’à la valeur
prescrite et permet de réduire considérablement
le niveau sonore du ventilateur. La vitesse de
rotation du ventilateur étant réglée sur la valeur
nécessaire et suffisante pour assurer le
refroidisse ment de l'armoire électrique (condition
requise : arrivée d'air froid), la consommation
d'énergie est nettement réduite. Le régulateur de
vitesse de rotation est tout particulièrement dédié
aux ventilateurs à filtre et aux échangeurs
thermiques air-air Rittal.
2 Montage
L’appareil s’enclenche tout simplement sur le rail
porteur de 35 mm (EN 50 022).
3 Description fonctionnelle
3.1 Réglage de la vitesse de rotation (P1)
L'appareil abaisse la température de l'armoire élec-
trique jusqu'à la valeur fixée par réglage sur le po-
tentiomètre P1 (condition requise : arrivée d'air
froid). Un capteur à distance assure la mesure de
la température.
Jusqu'à l'atteinte de la température de consigne,
le ventilateur fonctionne à plein régime (voir dia-
gramme). Dans une plage de 10 K en dessous de
la valeur de consigne, la régulation de la vitesse de
rotation est linéaire. Lorsque la température baisse
13 K en dessous de la valeur de consigne, le ven-
tilateur est mis hors circuit.
Le ventilateur redémarre lorsque la température
atteint 10 K en dessous de la valeur de consigne.
Une impulsion permet au ventilateur de démarrer
dès qu'il est sous tension.
3.2 Vitesse de rotation minimale (P2)
Le ventilateur est mis hors circuit dès que la
vitesse de rotation minimale est atteinte. Le ré-
glage s'effectue proportionnellement à la vitesse
de rotation maximale. Se renseigner au préalable
sur la vitesse de rotation minimale admise par le
ventilateur (se référer aux indications du
constructeur pour les ventilateurs d'autres
marques).
Pour les ventilateurs à filtre Rittal des séries
SK 3321.xxx – SK 3327.xxx, nous conseillons une
vitesse de rotation minimale de ~40%.
Réglage :
Régler P2 sur 100 %, P1 sur 55 °C.
Réduire P1 jusqu'à ce que le ventilateur se
mette en marche.
Régler P2 sur la vitesse de rotation mini-
male désirée.
Vous pouvez à présent régler P1 sur la valeur de
température désirée.
Remarque : Dans le cas où la vitesse de rotation
minimale est réglée sur 100 %, le ventilateur
tourne toujours à sa vitesse maximale (il n'y a pas
de régulation).
3.3 Surveillance / Défaut
En fonctionnement normal, le contact 5-4 du
relais d'alarme est ouvert.
Température trop élevée :
Le système d'alerte de surchauffe se déclenche
dès que la température mesurée
dépasse de plus de 10 K la valeur de consigne
définie, voir diagramme.
La diode rouge clignote 1 fois.
Le relais d'indication de défaut bascule en posi-
tion de repos (bornes 5-4 fermées).
1 Application

F
10
Coupure de ligne vers le ventilateur :
La diode rouge clignote 2 fois.
Le relais d'indication de défaut bascule en
position de repos (bornes 5-4 fermées).
Rupture de sonde/ Court-circuit :
Dans ce cas, le ventilateur fonctionne à plein
régime (vitesse de rotation = 100 %).
La diode rouge clignote 3 fois.
Le relais d'indication de défaut bascule en
position de repos (bornes 5-4 fermées).
Panne de secteur
(régulateur sans tension) :
Le relais d'indication de défaut bascule en posi-
tion de repos (bornes 5-4 fermées).
3.4 Diodes
Verte = L'appareil est sous tension
Rouge = Défaut, voir paragraphe 3.3
3.5 Capteur à distance
Vous avez la possibilité non seulement de
raccourcir le capteur à distance mais aussi de le
rallonger jusqu'à une longueur d’environ 50m à
l'aide d'un conducteur bifilaire prévu pour 230V.
Eviter de poser le câble parallèlement à la ligne
d'alimentation.
4 Raccordement
Dimensions du capteur
Montage avec capteur raccourci
12
NL3
45
Sensor
Fan Alarm
M
1~
cos =1
Imax. = 5A
NL
Power
85-253V AC
Imax. 2A
Température
Vitesse de
rotation
Vitesse de
rotation
minimale
Valeur de consigneValeur de consigne
–10K
100%
Valeur de consigne
+10 K
Vitesse de
rotation du
ventilateur
Relais
d'alarme
5-4 ouvert
Relais
d'alarme
5-4 fermé
5K
3K A
La valeur de la
vitesse de rotation
minimale déplace
le point A sur
cette ligne
4 Raccordement

F
11
5 Caractéristiques techniques 6 Consignes de sécurité
- L'appareil est exclusivement prévu pour être
installé dans une armoire électrique fermée.
- Procéder au montage de l'appareil en obser-
vant les mesures de sécurité selon EN 60 335.
- Seul un montage correct permet d'assurer la
classe de protection II.
- Respecter les consignes et prescriptions géné-
rales de sécurité.
- Observer des instructions de service.
- Respecter les consignes de sécurité relatives à
l'installation de l'armoire.
- Seul le personnel compétent est habilité à
exécuter les différentes opérations.
- Lire attentivement et observer les indications de
la notice d’emploi Rittal avant de pratiquer toute
modification sur ou dans l'armoire électrique
(p. ex. modification du lieu d'implantation,
montage de nouveaux composants).
- Avant d'ouvrir l'appareil, il est indispensable de
le mettre hors tension et de s'assurer qu'il ne
puisse en aucun cas être remis sous tension
par inadvertance.
- Seul le personnel habilité possédant les instruc-
tions nécessaires est autorisé à modifier les
différents réglages de l'appareil.
- Ne pas poser la sonde parallèlement aux autres
lignes. Les radiations incidentes risqueraient de
perturber et dérégler le régulateur.
- Régler la vitesse de rotation minimale avec P2
de façon à ce que le ventilateur fonctionne
correctement quelles que soient les conditions
(sous-tension, température max. etc.).
- Tenir compte de la plage de température de
service tolérée (voir paragraphe 5 Caractéris-
tiques techniques)
7 Composition de la livraison
1 régulateur de vitesse de rotation
1 capteur à distance
1 notice de montage
8 Garantie
Pour l'appareil utilisé correctement, Rittal accorde
au client une garantie de 1 an à compter de la
date de livraison. Toute utilisation ou connexion
incorrectes entraînent l’annulation de la garantie
constructeur. Rittal décline toute responsabilité
pour les dommages résultant d'une utilisation
non conforme.
Référence SK 3120.200
Tension de service
100...230 V AC, 50/60 Hz
Plage de réglage
de la température (P1) 20…55 °C
Plage de réglage de
la vitesse de rotation
minimale (P2)
40…100 %
Vitesse de rotation
du ventilateur
Vitesse
minimale … 100 %
Sonde de température Longueur 1,80 m
Puissance max.
du ventilateur 200 W
Courant de
commutation max. 2 A
Régulation Par redressement à
l'entrée des phases
Alarme
Relais, inverseur 5 A,
cos = 1
(ne convient pas à SELV)
Sortie, mode de
fonctionnement Type 1Y
Classe du logiciel A
Degré d'encrassement
2
Tension assignée de
tenue aux chocs 4 kV
Température de
l'essai de dureté
à la bille
75 °C
Tension et intensité
du courant pour
l'essai CEM
230 V 0,1 A
Indice de protection IP 20
Température de
fonctionnement 0 °C à +55 °C
Température de
stockage –30°C à +70 °C
Raccordement
Bornes à vis
unifilaire ou multifilaire
0,75…1,5 mm2
Montage sur
rail porteur
35 mm
EN 50 022
Boîtier
Polycarbonate, UL 94 V-0
Dimensions L x H x P :
105 x 90,5 x 60,2
5 Caractéristiques techniques

NL
12
468 931 003 508 NL
Inhoudsopgave
1. Toepassing
2. Montage
3. Functiebeschrijving
3.1 Toerentalregeling
3.2 Minimaal toerental
3.3 Bewaking / Storing
3.4 LED's
3.5 Remote sensor
4. Aansluiting
5. Technische gegevens
6. Veiligheidsvoorschriften
7. Levering
8. Garantie
1 Toepassing
De SK 3120.200 is een onafhankelijk te
monteren, elektronische toerentalregeling voor
2-polige 1-fase wisselstroommotoren. Deze
toerentalregeling mag alleen in een behuizing
worden ingebouwd. De toerentalregeling regelt
de temperatuur in de behuizing tot de ingestelde
waarde. Bij toepassing van deze toerentalregeling
worden de ventilatorgeluiden aanzienlijk geredu-
ceerd. Het ventilatortoerental wordt zodanig ge-
regeld, dat de behuizing wordt gekoeld (gekoelde
inlaatlucht vereist). Hierdoor wordt bovendien de
energiebehoefte lager. De toerentalregeling is
bijzonder geschikt voor Rittal ventilatoren en
lucht/lucht-warmtewisselaars.
2 Montage
De toerentalregeling kan eenvoudig op de 35 mm
montagerail (EN 50 022) worden bevestigd.
3 Functiebeschrijving
3.1 Toerentalregeling (P1)
De behuizingstemperatuur wordt gereduceerd tot
de op de potentiometer P1 ingestelde temperatuur
(gekoelde inlaatlucht vereist). De temperatuur
wordt gemeten door de remote sensor. Zodra de
ingestelde gewenste waarde is bereikt, draait de
ventilator met een toerental van 100%, zie grafiek.
Binnen het proportionele bereik van 10 K vindt een
traploze regeling van het toerental plaats. Bij een
dalende temperatuur wordt de ventilator bij 13K
onder de gewenste waarde uitgeschakeld. De ven-
tilator schakelt opnieuw in bij 10 K onder de ge-
wenste waarde. De ventilator wordt bij het inscha-
kelen door een startimpuls gestart.
3.2 Minimaal toerental (P2)
Na het bereiken van het minimale toerental
schakelt de ventilator uit. De instelling vindt pro-
centsgewijs, met betrekking tot het maximale
toerental, plaats. Zorg dat de ventilator ook bij
minimaal toerental nog goed functioneert (zie
fabrikantinstructies bij externe ventilatoren).
Wij raden voor de ventilatoren van de serie
SK 3321.xxx – SK 3327.xxx een minimaal
toerental van ~40 % aan.
Instelling:
Stel P2 op 100 % in en P1 op 55 °C
Reduceer P1 tot de ventilator draait
Stel P2 op het gewenste minimale
toerental in
Nu kan P1 op de gewenste temperatuur worden
ingesteld.
Opmerking: Bij minimaal toerental = 100% draait
de ventilator altijd op maximale snelheid (geen
regeling).
3.3 Bewaking / Storing
Tijdens normaal bedrijf is contact 5-4 van het
alarmrelais open.
Te hoge temperatuur:
Bij een gemeten temperatuur die meer dan 10 K
hoger is dan de ingestelde gewenste waarde,
wordt de temperatuurbewaking aangesproken,
zie grafiek.
De rode LED knippert 1x.
Het storingsmeldrelais valt af (klemmen 5-4
gesloten).
Kabelonderbreking naar de ventilator:
De rode LED knippert 2x.
Het storingsmeldrelais valt af (klemmen 5-4
gesloten).
Sensorbreuk / kortsluiting:
In deze situatie draait de ventilator met maximaal
toerental.
De rode LED knippert 3x.
Het storingsmeldrelais valt af (klemmen 5-4
gesloten).
1 Toepassing

NL
13
Spanningsuitval
(regeling zonder spanning):
Het storingsmeldrelais valt af (klemmen 5-4
gesloten).
3.4 LED's
Groen = bedrijfsspanning aanwezig
Rood = storing, zie 3.3
3.5 Remote sensor
De remote sensor kan met een 2-aderige kabel,
die geschikt is voor 230 V, tot ca. 50m worden
verlengd. Inkorten is mogelijk. Het geleiden van
de kabel parallel aan voedingskabels dient te
worden voorkomen.
4 Aansluiting
Afmetingen van de sensor
Montage met ingekorte sensor
12
NL3
45
Sensor
Fan Alarm
M
1~
cos =1
Imax. = 5A
NL
Power
85-253V AC
Imax. 2A
Temperatuur
Toerental
Minimaal
toerental
Gewenste waardeGewenste waarde
–10K
100%
Gewenste waarde
+10 K
Ventilator-
toerental
Alarmrelais
5-4 open
Alarmrelais
5-4 gesloten
5K
3K A
Minimaal toerental
verschuift punt A
langs deze lijn
4 Aansluiting

NL
14
5 Technische gegevens 6 Veiligheidsvoorschriften
- Plaats de regeling alleen in een gesloten be huizing.
-
Neem bij inbouw van de toerentalregeling de vei-
ligheidsmaatregelen volgens EN 60 335 in acht.
- Beschermklasse || wordt alleen bij een vak -
kundige inbouw bereikt.
- Neem de algemene veiligheidsvoorschriften en
-bepalingen in acht.
- Neem de bedieningsinstructies in acht.
- Neem de veiligheidsvoorschriften van de be -
huizingsinstallatie in acht.
- Werkzaamheden mogen alleen door speciaal
hiervoor opgeleid personeel worden uitgevoerd.
- Lees bij modificaties aan of in de behuizing (bijv.
andere standplaats of inbouw van nieuwe
componenten) beslist eerst de Rittal montage-
handleiding (installatiedocumentatie) en neem
de informatie in acht.
- Schakel de toerentalregeling spanningsvrij en
beveilig deze tegen per ongeluk opnieuw
inschakelen alvorens de regeling te openen.
- Wijzigingen in de ingestelde waarden van de
toerentalregeling mogen uitsluitend worden uit-
gevoerd door personen die hiervoor toestem-
ming hebben en instructies hebben gehad.
- Plaats de sensor niet parallel aan andere kabels.
Instraling kan tot storingen bij de toerentalrege-
ling leiden.
- Stel het minimale toerental met P2 beslist
zodanig is, dat de ventilator onder alle omstan-
digheden zoals bijv. onderspanning, max.
temperatuur etc. correct functioneert.
- Neem het bedrijfstemperatuurbereik in acht (zie
„5 Technische gegevens“).
7 Levering
1 toerentalregeling
1 remote sensor
1 montagehandleiding
8 Garantie
Op deze toerentalregeling wordt bij correct
gebruik 1 jaar garantie gegeven, gerekend vanaf
de dag van levering. Bij ondeskundig gebruik of
onjuiste aansluiting komt de garantieregeling van
de fabrikant te vervallen. Voor hieruit voort -
komende schade kan Rittal niet aansprakelijk
worden gesteld.
Bestelnr. SK 3120.200
Bedrijfsspanning
100...230 V AC, 50/60 Hz
Instelbereik
temperatuur (P1) 20…55 °C
Instelbereik minimaal
toerental (P2) 40…100 %
Ventilatortoerental Min. toerental … 100%
Temperatuursensor Lengte 1,80 m
Max. ventilator-
vermogen 200 W
Schakelstroom max. 2A
Regeling Fase-aansnijding
Alarm
Relais,wisselcontact
5 A, cos = 1
(niet geschikt voor SELV)
Uitgang, capaciteit Type 1Y
Softwareklasse A
Vervuilingsgraad
2
Nominale
stoothoudspanning 4 kV
Temperatuur van
de kogeldruktest 75 °C
Spanning en stroom
voor EMC-test 230 V 0,1 A
Beschermklasse IP 20
Bedrijfstemperatuur 0 °C tot +55 °C
Opslagtemperatuur –30 °C tot +70 °C
Aansluiting
Schroefklemmen
massief of samen-
geslagen
0,75…1,5 mm2
Montage op
montagerail
35 mm
EN 50 022
Behuizingen
Polycarbonaat, UL 94 V-0
Afmetingen B x H x D:
105 x 90,5 x 60,2
5 Technische gegevens
468 931 003 508 S

SE
15
Innehåll
1. Användning
2. Montage
3. Funktionsbekrivning
3.1 Varvtalsreglering
3.2 Lägsta varvtal
3.3 Övervakning / störningar
3.4 LEDs
3.5 Temperaturgivare
4. Anslutning
5. Teknisk information
6. Säkerhetsinstruktioner
7. Leveransinnehåll
8. Garanti
1 Användning
SK 3120.200 är en enkelt monterbar elektronisk
varvtalsregulator för 2-poliga motorer med enfas-
växelström. Regulatorn får enbart monteras i ett
apparatskåp. Med hjälp av varvtalsregulatorn
sänks apparatskåpets innertemperatur till den
förinställda temperaturen. Regulatorn medför
också avsevärt lägre fläktbuller. Fläktvarvtalet
ställs in på så sätt att apparatskåpet kyls (förut-
satt tillgång till kall tilluft). Detta innebär även ett
lägre energibehov. Varvtalsregulatorn är särskilt
lämpad för Rittals filterfläktar och luft/luft värme-
växlare.
2 Montage
Regulatorn hakas enkelt i på 35 mm-profilskenan
(EN 50 022).
3 Funktionsbekrivning
3.1 Varvtalsreglering (P1)
Apparatskåpets temperatur sänks till den tempe-
ratur som anges på potentiometern P1 (förutsatt
tillgång till kall tilluft). Temperaturen kontrolleras via
temperaturgivaren.
När det inställda börvärdet uppnåtts körs fläkten
med ett varvtal på 100 %, se diagram. Varvtalet re-
gleras steglöst inom ett proportionalitetsområde på
10 K. Fläkten kopplas från när temperaturen sjunkit
till 13 K under börvärdet. Fläkten startar återigen
vid 10 K under börvärdet. Fläkten startar med en
startimpuls.
3.2 Lägsta varvtal (P2)
När det lägsta varvtalet uppnåtts stängs fläkten
av. Inställningarna anges i % i förhållande till det
maximala varvtalet. Det måste vara säkerställt att
fläkten är aktiv även vid lägsta varvtal (se tillver-
karuppgifter vid externa fläktar).
Vi rekommenderar ett lägsta varvtal på ~40 % vid
användning av våra filterfläktar i serien
SK 3321.xxx – SK 3327.xxx.
Inställning:
Ställ P2 på 100 %, P1 på 55 °C
Sänk P1 så långt som möjligt utan att fläk-
ten stängs av
Ställ in P2 på önskat lägsta varvtal
Nu kan P1 ställas in utifrån önskad temperatur.
Observera: Vid lägsta varvtal = 100 % körs fläkten
alltid med maximal hastighet (ingen reglering).
3.3 Övervakning / störningar
Vid normaldrift är kontakten 5-4 på alarmreläet
öppen.
Övertemperatur:
Vid en uppmätt temperatur på mer än 10 K över
det inställda börvärdet startar temperaturövervak-
ningen, se diagram.
Den röda LED-n blinkar 1x.
Larmreläet slår ifrån (kontakterna 5-4 är slutna).
Ledningsavbrott till fläkten:
Den röda LED-n blinkar 2x.
Larmreläet slår ifrån (kontakterna 5-4 är slutna).
Sensorfel / kortslutning:
I förekommande fall körs fläkten med fullt varvtal.
Den röda LED-n blinkar 3x.
Larmreläet slår ifrån (kontakterna 5-4 är slutna).
Spänningsbortfall
(regulator utan spänning):
Larmreläet slår ifrån (kontakterna 5-4 är slutna).
1 Användning

SE
16
3.4 LEDs
Grön = driftspänning föreligger
Röd = störning, se 3.3
3.5Temperaturgivare
Temperaturgivaren kan förlängas med upp till 50
meter med en 2-ledare lämpad för 230V, även
nedkortning är möjlig. Undvik näraliggande
förläggning med nätledningar.
4 Anslutning
Temperaturgivarens mått
Montage med avkortad sensor
12
NL3
45
Sensor
Fan Alarm
M
1~
cos =1
Imax. = 5A
NL
Power
85-253V AC
Imax. 2A
Temperatur
Varvtal
Lägsta
varvtal
BörvärdeBörvärde
–10K
100%
Börvärde
+10 K
Fläktvarvtal
Alarmrelä
5-4 öppen
Alarmrelä
5-4 sluten
5K
3K A
Lägsta varvtalet
förskjuter punkt A
på denna linje
4 Anslutning

SE
17
5 Teknisk information 6 Säkerhetsinstruktioner
- Monteras enbart i ett slutet apparatskåp.
-
Beakta säkerhetsåtgärderna enligt EN 60 335 vid
montage.
- Skyddsklass || uppnås enbart genom fack -
mannamässigt montage.
- Beakta allmänna säkerhetsföreskrifter och
-bestämmelser.
- Beakta skötselinstruktioner.
- Beakta säkerhetsanvisningarna gällande
apparatskåpsinstallation.
- Arbeten får enbart utföras av auktoriserad fack-
personal.
- Om ändringar görs på eller i apparatskåpet
(t. ex. annan placering eller montage av nya
komponenter) ska Rittals montageanvisning
(anläggningsdokumentation) läsas och beaktas.
- Koppla alltid bort spänning och säkra mot
oavsiktlig påkoppling innan apparaten öppnas.
- Ändringar av inställda värdena på aggregatet får
enbart genomföras av personer som har
adekvat behörighet och utbildning.
- Placera ej sensorn parallellt med andra
ledningar. Strålning kan leda till störningar hos
regulatorn.
- Ställ in lägsta varvtalet med P2 på så sätt att
fläkten körs säkert under alla förhållanden, t.ex.
underspänning, maximal temperatur m.m.
- Beakta driftstemperaturen (se "5 Tekniska
data").
7 Leveransinnehåll
1 varvtalsregulator
1 temperaturgivare
1 montageanvisning
8 Garanti
Denna apparat omfattas av en 1-årsgaranti vid
korrekt användning. Garantin börjar gälla på
leveransdagen. Vid inkorrekt användning eller
felaktig anslutning upphör tillverkarens garanti -
ansvar att gälla. Rittal ansvarar inte för skador
som uppstått till följd av felaktig användng eller
an slutning.
Art. nr. SK 3120.200
Driftspänning
100...230 V AC, 50/60 Hz
Inställningsområde
temperatur (P1) 20…55 °C
Inställningsområde
lägsta varvtal (P2) 40…100 %
Fläktvarvtal min. varvtal … 100 %
Temperatursensor Längd 1,80 m
max. fläkteffekt 200 W
Brytström max. 2 A
Reglering Fasstyrning
Larm
Relä, växlare 5A,
cos = 1
(ej lämpad för SELV)
Utgång, verkningssätt Type 1Y
Mjukvaruklass A
Nedsmutsningsgrad
2
Märkstötspänning 4 kV
Temperatur vid
kultryckstest 75 °C
Spänning och
ström för EMC-test 230 V 0,1 A
Kapslingsklass IP 20
Driftstemperatur 0 °C till +55 °C
Lagringstemperatur –30 °C till +70 °C
Anslutning
Skruvklämmor
en- eller flertrådiga
0,75…1,5 mm2
Montage på
profilskena
35 mm
EN 50 022
Skåp Polykarbonat, UL 94 V-0
Mått B x H x D:
105 x 90,5 x 60,2
5 Teknisk information

IT
18
Indice
1. Impiego
2. Montaggio
3. Funzionamento
3.1 Regolatore numero di giri
3.2 Numero di giri minimo
3.3 Unità di controllo/ guasto
3.4 LED
3.5 Sonda remota
4. Connessioni elettriche
5. Dati tecnici
6. Avvertenze di sicurezza
7. Parti incluse nella fornitura
8. Garanzia
1 Applicazione
L'SK 3120.200 è un regolatore elettronico del nu-
mero di giri per motori a 2 poli a corrente alter-
nata monofase.
L'apparecchio è installabile premontato negli
armadi di comando, su sbarra DIN. Grazie alla
regolazione della velocità, la temperatura
all'interno dell'armadio si riduce al valore di set
impostato. Con l'impiego del regolatore il rumore
delle ventole diminuisce notevolmente. Il numero
di giri dei motori dei ventilatori viene regolato in
modo tale da raffreddare l'armadio (a condizione
che l'aria in ingresso sia fredda). In tal modo si ri-
duce il consumo energetico. Il regolatore è parti-
colarmente adatto per i ventilatori-filtro e gli
scambiatori di calore aria/aria Rittal.
2 Montaggio
L'apparecchio può essere inserito a scatto su
guida da 35 mm conforme a EN 50 022.
3 Funzionamento
3.1
Regolatore numero di giri (P1)
La temperatura interna dell'armadio di comando
viene abbassato fino al valore di set impostato con
il potenzio metro P1 (a condizione che l'aria in
ingresso sia fredda). La temperatura viene rilevata
dalla sonda.
Fino al raggiungimento del valore di set impostato,
il ventilatore funziona al 100% del numero dei giri
(vedi grafico). Fino a 10 K al di sotto del set si veri-
fica una regolazione con riduzione proporzionale
automatica del numero di giri. Se la temperatura
diminuisce ulteriormente, il ventilatore viene com-
pletamente spento a 13 K sotto il valore di set im-
postato. Il ventilatore si riavvia a 10K sotto il valore
di set. Al momento dell'accensione, il ventilatore è
attivato con un impulso di avviamento.
3.2 Numero di giri minimo (P2):
Dopo il raggiungimento del numero di giri minimo,
il ventilatore si scollega. La regolazione avviene in
% riferita al numero di giri massimo. Assicurarsi
che il ventilatore funzioni in modo sicuro anche
con il numero di giri minimo (se si utilizzano ven-
tilatori non di produzione Rittal, attenersi alle
indicazioni del costruttore).
Consigliamo per i nostri ventilatori-filtro della serie
SK 3321.xxx – SK 3327.xxx un numero di giri
minimo pari a ~40 %.
Regolazione:
Impostare P2 su 100%, P1 su 55 °C
Diminuire P1 fino a quando il ventilatore è
funzionante
Impostare P2 sul valore di giri minimo desi-
derato
Ora è possibile regolare P1 sulla temperatura de-
siderata.
Nota: Con un numero di giri = 100%, il ventilatore
funziona sempre alla velocità massima (nessuna
regolazione).
3.3 Unità di controllo/ guasto
In regime normale, il relè allarme ha il contatto
5-4 aperto.
Sovratemperatura:
Con una temperatura rilevata superiore a 10K
rispetto al valore di set impostato, scatta l’unità di
controllo.
Il LED rosso lampeggia 1 volta.
Il relè di segnalazione guasto è disattivato
(morsetti 5-4 chiusi).
Interruzione del flusso di corrente al
ventilatore:
Il LED rosso lampeggia 2 volte.
Il relè di segnalazione guasto si chiude
(morsetti 5-4 chiusi).
1 Applicazione
468 931 003 508 I

IT
19
Rottura della sonda / corto circuito:
In questo caso il ventilatore funziona al massimo
del numero di giri.
Il LED rosso lampeggia 3 volte.
Il relè di segnalazione guasto si chiude
(morsetti 5-4 chiusi).
Caduta di tensione
(regolatore senza alimentazione):
Il relè di segnalazione guasto si chiude
(morsetti 5-4 chiusi).
3.4 LED
Verde = tensione d'esercizio presente
Rossa = guasto, vedi paragrafo 3.3
3.5 Sonda remota
La sonda remota è installabile fino a ca. 50m tra-
mite un cavo bifilare da 230V. E' possibile ridurre
la lunghezza del cavo. Evitare di installare la
sonda insieme ai cavi della rete di alimentazione.
4 Connessioni elettriche
Dimensioni della sonda
Montaggio con sonda ridotta
12
NL3
45
Sensor
Fan Alarm
M
1~
cos =1
Imax. = 5A
NL
Power
85-253V AC
Imax. 2A
Temperatura
Numero
di giri
Numero
di giri
minimo
Valore di set impostatoValore di set impostato
–10K
100%
Valore di set impostato
+10 K
Numero di
giri ventilatore
Relè allarme
5-4 aperti
Relè allarme
5-4 chiusi
5K
3K
A
L'impostazione del
n. di giri min.
sposta il punto A
su questa linea
4 Connessioni elettriche

IT
20
5 Dati tecnici 6 Avvertenze di sicurezza
- Utilizzare il regolatore solo in armadi di comando
chiusi.
- Per l'installazione dell'apparecchio, attenersi alle
prescrizioni di sicurezza secondo EN 60 335.
- Il grado di protezione si raggiunge solo se il
montaggio è eseguito a regola d'arte.
- Attenersi alle prescrizioni vigenti e alle norme
generali di sicurezza.
- Attenersi alle Istruzioni di funzionamento.
- Seguire le indicazioni di sicurezza relative all’in-
stallazione nell'armadio di comando.
- Gli interventi possono essere eseguiti solo da
personale specializzato e autorizzato.
- In caso di modifiche all'armadio di comando (ad
es. in caso di diversa collocazione o di ulteriore
inserimento di componenti nell'armadio), atten-
ersi sempre alle istruzioni di montaggio Rittal.
- Prima di aprire l’apparecchio per la manuten-
zione, accertarsi che sia scollegato dall’alimen-
tazione elettrica e assicurarsi che non sia
possibile un'accensione involontaria.
- Eventuali variazioni alle impostazioni di fabbrica
dell’apparecchio possono essere apportate
solo da personale addestrato ed autorizzato.
- Posare la sonda non in parallelo ad altri cavi.
Eventuali interferenze possono influenzare il
funzionamento del regolatore.
- Impostare tassativamente il numero minimo di
giri con P2 in modo che il ventilatore possa
funzionare correttamente in tutte le condizioni,
ad es. bassa tensione, temperatura max. ecc.
- Rispettare i limiti della temperatura ambiente
(vedi paragrafo 5 "Dati tecnici").
7 Parti incluse nella fornitura
1 Regolatore del numero di giri
1 Sonda remota
1 Istruzioni di montaggio
8 Garanzia
Su questo apparecchio si applica 1 anno di
garanzia, con decorrenza dal giorno della conse-
gna. In caso di utilizzo o collegamento elettrico
inadeguati, la garanzia del costruttore decade. In
tal caso Rittal non risponde di eventuali danni.
N. d'ord. SK 3120.200
Tensione d'esercizio
100...230 V AC,
50/60 Hz
Campo di
impostazione
temperatura (P1)
20…55 °C
Campo di
impostazione numero
di giri minimo (P2)
40…100 %
Numero di giri del
ventilatore
Numero di giri
minimo … 100 %
Sonda di temperatura Lunghezza 1,80 m
Potenza max.
ventilatore 200 W
Corrente di
commutazione max. 2 A
Regolatore
Variazione di tensione
Allarme
Relè, invertitore 5A,
cos = 1
(non idoneo per
applicazioni SELV)
Uscita, funzionamento Typ 1Y
Classe software A
Grado di inquinamento 2
Tensione nominale
di tenuta ad impulso 4 kV
Temperatura di prova
(test di pressione a sfera) 75 °C
Tensione e corrente
per prova EMC 230 V 0,1 A
Grado di protezione IP 20
Temperatura di esercizio da 0 °C a +55 °C
Temperatura di
stoccaggio da –30 °C a +70 °C
Allacciamento
Morsetti a vite
unifilari o multifilari
0,75…1,5 mm2
Montaggio su guida
35 mm
EN 50 022
Contenitore
Policarbonato,
UL 94 V-0
Dimensioni L x A x P:
105 x 90,5 x 60,2
5 Dati tecnici
468 931 003 508 E

ES
21
Contenido
1. Aplicación
2. Montaje
3. Descripción del funcionamiento
3.1 Regulador de la velocidad
3.2 Velocidad mínima
3.3 Control/ Fallo
3.4 Iluminación
3.5 Sensor remoto
4. Conexión
5. Datos técnicos
6. Indicaciones de seguridad
7. Unidad de envase
8. Garantía
1 Aplicación
El SK 3120.200 es un regulador de velocidad
electrónico de montaje independiente para
motores de corriente alterna monofásica bipola-
res. Este aparato solo debe montarse en un ar-
mario de distribución. Mediante el regulador de
velocidad se reduce la temperatura interior del
armario hasta alcanzar la temperatura ajustada.
Con la utilización de este aparato se consigue
reducir una parte importante del ruido generado
por los ventiladores. La velocidad de los ventila-
dores se regula de forma que realicen una venti-
lación del armario (siempre que el aire de entrada
sea frío). De este modo también se consiguen
reducir las necesidades de energía. El regulador
de velocidad es especialmente adecuado para
los ventiladores con filtro y los intercambiadores
de calor aire/aire de Rittal.
2 Montaje
El aparato puede insertarse fácilmente sobre el
carril soporte 35 mm (EN 50 022).
3
Descripción del funcionamiento
3.1
Regulación de la velocidad (P1)
La temperatura del armario se reduce hasta alcan-
zar la temperatura ajustada en el potenciómetro
P1 (siempre que el aire de entrada sea frío). La
temperatura se mide a través del sensor remoto.
Al alcanzar el valor ajustado el ventilador funcionará
con una velocidad del 100 %, ver diagrama. Dentro
del margen de proporcionalidad de 10 K se
produce una regulación de la velocidad sin fases.
Al caer la temperatura el ventilador se desconec-
tará al alcanzar 13 K por debajo del valor ajustado.
El ventilador vuelve a ponerse en marcha al alcan-
zar 10 K por debajo del valor ajustado. El ventilador
se pone en marcha con un impulso de arranque.
3.2 Velocidad mínima (P2):
Tras alcanzar la velocidad mínima el ventilador se
desconecta. El ajuste se realiza en % asociado a
la velocidad máxima. Debe garantizarse que el
ventilador funciona de forma segura también al
alcanzar la velocidad mínima (ver datos del fabri-
cante en ventiladores ajenos). En nuestros venti-
ladores con filtro de la serie SK 3321.xxx –
SK 3327.xxx recomendamos una velocidad mí-
nima de ~40 %.
Ajuste:
Ajustar P2 al 100 %, P1 al 55 °C
Reducir P1 hasta que el ventilador se
ponga en marcha
Ajustar P2 a la velocidad mínima deseada
Ahora es posible ajustar P1 a la temperatura
deseada.
Nota: Con velocidad mínima = 100 % el ventila-
dor funciona siempre a la velocidad máxima (sin
regulación).
3.3 Control / Fallo
En servicio normal se abre el contacto 5-4 en el
relé de alarma.
Exceso de temperatura:
Al detectarse una temperatura de más de 10 K
por encima del valor ajustado se conectará el
control térmico, ver diagrama.
El led rojo parpadeará 1 vez.
El relé de indicación de fallo se desconecta
(bornes 5-4 cerradas).
Interrupción de la línea al ventilador:
El led rojo parpadeará 2 veces.
El relé de indicación de fallo se desconecta
(bornes 5-4 cerrados).
Rotura de sensor / Cortocircuito:
En este caso el ventilador funcionará a la velo -
cidad máxima.
El led rojo parpadeará 3 veces.
El relé de indicación de fallo se desconecta
(bornes 5-4 cerrados).
1 Aplicación

ES
22
Caída de tensión
(regulador sin tensión):
El relé de indicación de fallo se desconecta
(bornes 5-4 cerrados).
3.4 Led’s
Verde = Tensión de servicio correcta
Rojo = Fallo, ver 3.3
3.5 Sensor remoto
El sensor remoto puede prolongarse mediante un
cable bifilar adecuado para 230 V en hasta 50 m,
también puede cortarse. Debe evitarse el guiado
en paralelo excesivamente junto con cables de
red.
4 Conexión
Medidas del sensor
Montaje con sensor cortado
12
NL3
45
Sensor
Fan Alarm
M
1~
cos =1
Imax. = 5A
NL
Power
85-253V AC
Imax. 2A
Temperatura
Velocidad
V
elocidad
mínima
Valor teóricoValor teórico
–10K
100%
Valor teórico
+10 K
Velocidad
ventilador
Relé de
alarma
5-4 abierto
Relé de
alarma
5-4 cerrado
5K
3K
Velocidad mínima
desplaza en punto
A a esta línea
A
4 Conexión

ES
23
5 Datos técnicos 6 Indicaciones de seguridad
- Utilizar sólo en un armario cerrado.
- Tener en cuenta las medidas de seguridad
según EN 60 335 durante el montaje del apa-
rato.
- El grado de protección II sólo se alcanza si el
montaje se ha realizado adecuadamente
- Tener en cuenta las normativas y regulaciones
de seguridad generales.
- Tener en cuenta las instrucciones de funciona-
miento.
- Tener en cuenta las normas de seguridad del
armario y de la instalación.
- Las tareas de mantenimiento sólo deben reali-
zarlas personal técnico.
- Si se realizan modificaciones en el armario (por
ej. cambio del lugar de ubicación o se añaden
componentes) deben leerse y tenerse en
cuenta las instrucciones de montaje de Rittal.
- Antes de abrir el aparato debe desconectarse
de la red y protegerse contra un encendido
involuntario.
- La modificación de los valores ajustados en el
aparato debe ser realizada únicamente por per-
sonas autorizadas.
- No guiar los sensores en paralelo a otros ca-
bles. Las radiaciones pueden provocar fallos en
el regulador.
- Ajustar la velocidad mínima con P2 de forma
que el ventilador funcione de forma segura en
cualquier situación, por ej. con tensión mínima,
exceso de temperatura, etc.
- Tener en cuenta el campo de temperatura de
servicio (ver “5 Datos técnicos”)
7 Unidad de envase
1 regulador de velocidad
1 sensor remoto
1 instrucciones de montaje
8 Garantía
Sobre este aparato otorgamos 1 año de garantía
contado a partir del día de suministro, siempre
que su utilización y conexión se efectúe de forma
correcta.
El fabricante no se hace responsable de los
daños producidos a consecuencia de un uso y
mantenimiento inadecuados del aparato.
Ref. SK 3120.200
Tensión de servicio
100...230 V AC, 50/60 Hz
Campo de ajuste de
la temperatura (P1) 20…55 °C
Campo de ajuste
velocidad mínima (P2) 40…100 %
Velocidad ventilador Velocidad mín. … 100 %
Sensor térmico Long. 1,80 m
Potencia máx.
del ventilador 200 W
Tensión de
conmutación máx. 2 A
Regulación Arranque fases
Alarma
Relé, contacto
conmutado 5 A,
cos = 1
(no adecuado para SELV)
Salida, modo de
funcionamiento Tipo 1Y
Clase de software A
Grado de suciedad 2
Tensión de choque 4 kV
Temperatura del
ensayo de dureza
Brinell
75 °C
Tensión y corriente
para ensayo EMC 230 V 0,1 A
Grado de protección IP 20
Temperatura de
servicio 0 °C hasta +55 °C
Temperatura de
almacenaje –30°C hasta +70 °C
Conexión
Bridas atornilladas
unifilar o multifilar
0,75…1,5 mm2
Montaje sobre
carril soporte
35 mm
EN 50 022
Caja
Policarbonato, UL 94 V-0
Dimensiones An x Al x Pr:
105 x 90,5 x 60,2
5 Datos técnicos

JP
24
目次
1. 用途
2. 取付け
3. 機能の説明
3.1 回転数制御
3.2 最低回転数
3.3 監視/障害
3.4 LED
3.5 リモートセンサー
4. 接続
5. 仕様
6. 安全に関するご注意
7. 同梱品
8. 保証
1用途
SK 3120.200は2極の単相交流モーター
用の、独立して取付け可能な電子式回転
数コントローラです。このユニットは
エンクロージャー内にのみ取り付けるこ
とができます。
回転数コントローラにより、エンクロー
ジャーの内部温度は設定温度に制御され
ます。このユニットを使用すると、ファ
ンノイズをかなり減少することができま
す。ファン回転数は、
エンクロージャーを効率的に冷却するよ
うに制御されます(吸気は冷気であるこ
とが前提です)。そのため電力消費を低
減することもできます。回転数コントロ
ーラはリタールフィルターファンおよび
空冷式クーリングユニットに最適です。
2取付け
このユニットは35 mmのサポートレール
(EN 50 022)に簡単に取り付けること
ができます。
3機能の説明
3.1 回転数コントローラ(P1)
エンクロージャーの温度は、ポテンショ
メータP1で、調整した設定温度に下げら
れ
ます(吸気は冷気であることが前提です)
。
温度はリモートセンサーで測定します
。設定された目標値に達すると、ファン
は100 %の回転数で作動します
(表を参照)。目標値からマイナス10 K
までの比例範囲内では、回転数は無段階
で制御されます。温度が下がると、目標
値マイナス13 Kでファンはオフになりま
す。ファンは目標値マイナス10 Kで再び
スタートします。ファンがオンになると
きは、パルス信号により起動します。
3.2 最低回転数(P2)
最低回転数に達すると、ファンはオフに
なります。 設定は最大回転数に対する、
パーセンテージで行います。ファンが最
低回転数でもまだ回転していることを確
認する必要があります(メーカーの取扱
説明書を参照)。
当社SK 3321.xxx – SK 3327.xxxシリー
ズのフィルターファンでは、最低回転数
は40%までを推奨します。
設定:
P2を100%に設定して、P1は55 °C
にする
P1をファンが回転する限り低くする
P2を望みの最低回転数に設定する
P1のみ、望みの温度に設定することがで
きます。
注記:最低回転数=100 %の設定にすると
ファンは常に最高速度で回転します
(制御なし)。
3.3 監視/障害
通常運転時、アラームリレーの
コンタクト5‐4は開の状態です。
温度超過の場合:
設定目標値より10 Kを超える温度が測定
されると、温度監視機能が作動します
(表を参照)。
赤いLEDが1回点滅します。
障害信号リレーがオンになります
(端子5‐4間が閉の状態)。
ファンへの配線が断線の場合:
赤いLEDが2回点滅します。
障害信号リレーがオンになります
(端子5‐4が閉の状態)。
センサー不良/短絡の場合:
この場合、ファンはフル回転します。
赤いLEDが3回点滅します。
障害信号リレーがオンになります
(端子5‐4が閉の状態)。
1 用途
468 931 003 508 JP

JP
25
停電(コントローラーに電圧がかかって
いない)場合:
障害信号リレーがオンになります
(端子5‐4が閉の状態)。
3.4LED
緑 = 電源がオン
赤 = 障害あり、3.3項を参照
3.5リモートセンサー
リモートセンサーは230 V用2心ケーブル
を使って約50 mまで伸ばすことができま
すが、短くすることも可能です。電源ケー
ブルと平行に敷くのは避けてください。
4接続
センサーの寸法
短くしたセンサーの取付け
12
NL3
45
Sensor
Fan Alarm
M
1~
cos =1
Imax. = 5A
NL
Power
85-253V AC
Imax. 2A
温度
回転数
最低回転数
目標値目標値
–10K
100%
目標値
+10 K
ファン回 転 数
アラームリレー
5-4 開
アラームリレー
5-4閉
5K
3K A
最低回転数を変え
ると、A点がこの線
上で移動します。
3 機能の説明

JP
26
5仕様 6安全に関する注意事項
‐ 密閉型のエンクロージャーでのみご使用
ください。
‐ユニットを取り付ける際には、欧州規格
EN 60 335準拠の安全措置をご確認くだ
さい。
‐正しく取付けた場合のみ保護等級||を実
現することができます。
‐一般的な安全規定および安全規格を遵守
してください。
‐取扱説明書を遵守してください。
‐エンクロージャーの取付けにおける安全
に関する注意事項を遵守してください。
‐作業は必ず専門の作業員にお任せくださ
い。
‐エンクロージャーのまたはエンクロージ
ャー内の変更をする場合(例えば、他の
設置場所または新しい機器の取付け)は
必ずリタールの取扱説明書を事前に読み
、それに従ってください。
‐
ユニットを開ける前に、電源を切り、
誤って電源が入らないようにしてくだ
さい。
‐ユニットの初期設定値を変更する時は、
それに対して資格があり、教育を受けた
要員のみがこれを行うことができます。
‐センサーは他のケーブルと並べないでく
ださい。放射線はコントローラを故障に
導く恐れがあります。
‐例えば電圧低下や最高温度など、いかな
る条件においても、ファンが確実に作動
するように、必ず最低回転数をP2で
設定してください。
‐使用温度範囲を遵守してください
(「5章の仕様」を参照)。
7同梱品
回転数コントローラ1個
リモートセンサー1個
取扱説明書1部
8保証
ユニットを正しくお使いいただいた場合
の保証は納品日より1年間です。指定以外
の用途によるご使用や誤った接続を行っ
た場合はメーカー保証は無効となります
。このような原因で発生した不具合に関
して、メーカーは責任を負いません。
品番 SK 3120.200
電圧
100...230 V AC, 50/60 Hz
設定温度範囲(P1)20…55 °C
最低回転数(P2)
設定範囲 40…100 %
ファン回転数 最低回転数〜100 %
温度センサー 長さ1.80 m
最大ファン出力 200 W
スイッチング電流 最大 2A
制御方式 位相制御
アラーム
リレー、切替接点5A、
cos = 1
(SELVには適しません)
出力、運転モード タイプ1Y
ソフトウェアクラス A
汚染レベル 2
定格サージ耐電圧 4 kV
鋼球押込試験の温度 75 °C
EMC
試験用電圧および電流
230 V 0.1 A
保護等級 IP 20
使用温度 0 °C ~ +55 °C
保管温度 –30 °C ~ +70 °C
接続端子
0.75 ~ 1.5 mm2
単心または
多心ケー
ブル用ねじ式端子
サポートレール
35 mm
EN 50 022に取付け
本体 ポリカーボネート製、
UL 94 V-0
外形寸法 幅 × 高さ × 奥行:
105 x 90.5 x 60.2
5 仕様
27

Power Distribution
Stromverteilung
Distribution de courant
Stroomverdeling
Strömfördelning
Distribuzione di corrente
Distribución de corriente
IT Solutions
IT-Solutions
Solutions IT
IT-Solutions
IT-lösningar
Soluzioni per IT
Soluciones TI
System-Klimatisierung
System Climate Control
Climatisation
Systeemklimatisering
Systemklimatisering
Soluzioni di climatizzazione
Climatización de sistemas
Schaltschrank-Systeme
Industrial Enclosures
Coffrets et armoires électriques
Kastsystemen
Apparatskåpssystem
Armadi per quadri di comando
Sistemas de armarios
Elektronik-Aufbau-Systeme
Electronic Packaging
Electronique
Electronic Packaging Systems
Electronic Packaging
Contenitori per elettronica
Sistemas para la electrónica
Communication Systems
Communication Systems
Armoires outdoor
Outdoor-behuizingen
Communication Systems
Soluzioni outdoor
Sistemas de comunicación
Rittal GmbH & Co. KG · Postfach 16 62 · D-35726 Herborn
Telefon (0 27 72) 5 05-0 · Telefax (0 27 72) 5 05 -23 19 · eMail: Info@rittal.de · www.rittal.de