ZB20734_3980060.vp Kenmore Whirlpool Dryer Tech Sheet 110.82832100
2013-04-09
: Pdf Kenmore - Whirlpool Dryer Tech-Sheet 110.82832100 Kenmore - Whirlpool Dryer Tech-Sheet 110.82832100 Kenmore
Open the PDF directly: View PDF
.
Page Count: 12

TECH SHEET - DO NOT DISCARD PAGE 1
FOR SERVICE TECHNICIAN'S USE ONLY PART NO. 3980060
Electrical Shock Hazard
Disconnect power before servicing.
Replace all parts and panels before
operating.
Failure to do so can result in death
or electrical shock.
IMPORTANT
Electrostatic Discharge (ESD) Sensitive Electronics
ESD problems are present everywhere. ESD may damage or weaken the machine
control electronics. The new control assembly may appear to work well after
repair is finished, but failure may occur at a later date due to ESD stress.
■Use an anti-static wrist strap. Connect wrist strap to green ground
connection point or unpainted metal in the appliance
-OR-
Touch your finger repeatedly to a green ground connection point or
unpainted metal in the appliance.
■Before removing the part from its package, touch the anti-static bag to a
green ground connection point or unpainted metal in the appliance.
■Avoid touching electronic parts or terminal contacts; handle machine control
electronics by edges only.
■When repackaging failed machine control electronics in anti-static bag,
observe above instructions.
DISPLAY FAULT/ERROR CODES
The error codes below would be indicated when attempting to start a drying cycle, or after
activating the Diagnostic Test Mode.
DISPLAY DESCRIPTION EXPLANATION AND RECOMMENDED PROCEDURE
PF
POWER FAILURE “PF” flashes to indicate that a power failure occurred while the dryer
was running. Press START to continue the cycle, or press
PAUSE/CANCEL to clear the display.
E1
THERMISTOR OPEN “E1” flashes if the thermistor is open. See TEST #3a, page 6.
E2
THERMISTOR SHORTED “E2” flashes if the thermistor has shorted. See TEST #3a, page 6.
DIAGNOSTIC GUIDE
Before servicing, check the following:
■Is the power cord firmly plugged into a
live circuit with proper voltage?
■Has a household fuse blown or circuit
breaker tripped? Time delay fuse?
■Is dryer vent properly installed and
clear of lint or obstructions?
■All tests/checks should be made with a
VOMorDVM having a sensitivity of
20,000 ohms per volt DC or greater.
■Check all connections before replacing
components. Look for broken or loose
wires, failed terminals, or wires not
pressed into connectors far enough.
■The most common cause for control
failure is corrosion on connectors.
Therefore, disconnecting and
reconnecting wires will be necessary
throughout test procedures.
■Connectors: Look at top of connector.
Check for broken or loose wires. Check
for wires not pressed into connector far
enough to engage metal barbs.
■Resistance checks must be made with
power cord unplugged from outlet.
DIAGNOSTIC TESTS
These tests allow factory or service
personnel to test and verify all inputs to the
machine control electronics. One may want
to do a quick and overall checkup of the
dryer with these tests before going to
specific troubleshooting tests.
ACTIVATING THE DIAGNOSTIC
TEST MODE
1. Be sure the dryer is in Standby Mode
(plugged in and all indicators off).
2. Press the following button sequence:
MORE TIME ➔LESS TIME ➔
MORE TIME ➔LESS TIME
- all within 5 seconds.
3. All indicators on the console are
illuminated with “88” showing in the
“ESTIMATED TIME REMAINING”
(two-digit) display, if this test mode
has been entered successfully.
If unsuccessful entry into diagnostic
mode, actions can be taken for
specific indications:
Indication 1:
None of the indicators or
display turns on.
Action:
Select any Manual Cycle.
If indicators come on, then try to change
the dryer time by pressing the More Time
and Less Time buttons. If either button
fails to change the time, something is
faulty with one of those buttons, and it is
not possible to enter the diagnostic mode.
Remove the console electronics and
housing. See Accessing & Removing the
Electronic Assemblies, page 10.
If no indicators come on after pressing
the Manual Cycle buttons, go to
TEST #1 (Supply Connections), page 4.
Indication 2:
E1 or E2 flashes from
the display.
Action:
Proceed to TEST #3a (Thermistor
Test), page 6.
Indication 3:
E3 flashes from the
display.
Action:
Check that the correct machine
control electronics and Console
Electronics and Housing are installed.
Do so by removing these components to
view the part numbers and compare
them to the part numbers in the
Components Table on page 2. See
Accessing & Removing the Electronic
Assemblies, page 10. Replace
components if necessary.
Diagnostic: Console switches and
indicators
Pressing each button should cause a beep
tone and control one or more LEDs as
shown in figure 1, Console Diagnostics,
page 2. Pressing the Start button will also
control the motor and heater, while the
two-digit display will indicate “01”.
Diagnostic: Moisture Sensor
Locate two metal strips on the face of the
lint screen housing. Bridge these strips with
awet cloth or a finger. If a beep is heard
and “03” is displayed on the console, the
sensor is OK. If not, or if a beep tone is
heard before bridging the moisture strips,
go to TEST #4, step 2, page 7.
Diagnostic: Door Switch
Opening the door should cause a beep tone
and a number and letter to be indicated in
the two-digit display. Closing the door firmly
should cause a beep tone and the display to
go blank or indicate “88”.

PART NO. 3980060 FOR SERVICE TECHNICIAN'S USE ONLY
PAGE 2 TECH SHEET - DO NOT DISCARD
Button
controls
all LEDs
above button
Each cycle select
button controls
only its own LED
Start button
controls
Status LEDs
Start button
turns on Dryer
(and controls
Status LEDs)
Button
controls
all LEDs
above button
Button
controls
all LEDs
above button
This button controls
the left digit
This button controls
the right digit
Each button
controls only
its own LED
Tur ns off all LEDs
and exits
diagnostic mode
Figure 1.
Console Diagnostics
COMPONENT
PART NUMBER
Electric
Dryers Gas
Dryers
Console Electronics and Housing
for White/Graphite Models: 82822
84832
92822
94832
8529879
8529879
1
—
—
—
—
8529879
8529879
1
for Bisque/Graphite Models: 82824
84834
92824
94834
8529880
8529880
1
—
—
—
—
8529880
8529880
1
for Graphite/Black Models: 82826
84836
92826
94836
8529881
8529881
1
—
—
—
—
8529881
8529881
1
Machine Control Electronics 3980062 3980062
Main Wire Harness 8299926 8299927
Digital Wire Harness 8299925 8299929
Wire Harness, Moisture Sensor 3406653 3406653
Wire Harness, Gas Valve — 3401850
Door Switch 8519323 8519323
Wire and Door Switch Assembly 8283288 8283288
Belt Switch 3394881 3394881
Thermal Cut-Off 8318314 —
Thermal Fuse 3390719 3390719
Heat Element Assembly 8527865 —
Gas Burner Assembly — 8318276
High Limit Thermostat 3391914 3403140
Drive Motor 3395654 3395654
Thermistor - NTC 10k Ohms 3976615 3976615
1
Add Model Selector p/n 8519455. Insert Model Selector into rear
of the console electronics.
Blue White Green/
Yellow
Black
Pluggable Drive
Motor Switch
Drum Size: Drum Speed:
7.0 cubic feet 51.5 ± 3 RPM CW
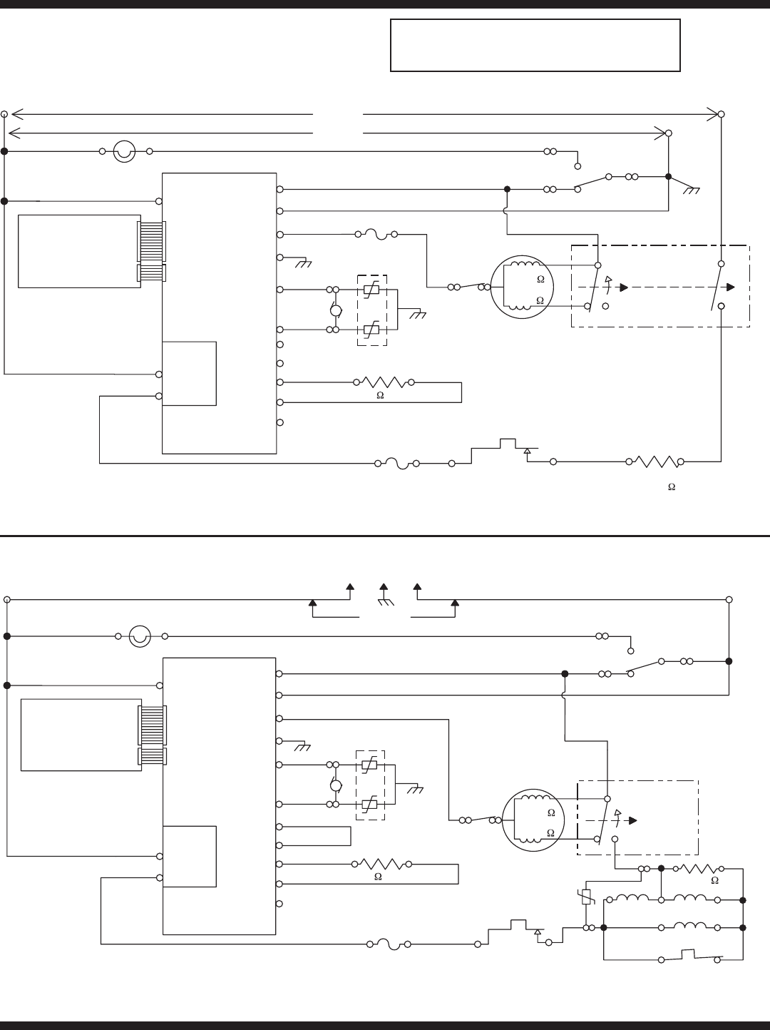
ELECTRIC DRYER
1M 2M 3M 5M 6M
=
Contacts closed
Contacts
Function
Start
Run
Centrifugal Switch (Motor)
3M 5M 6M
=
Contacts closed
Contacts
Function
Start
Run
Centrifugal Switch (Motor)
BLACK
BLUE
BLUE
WHITE
WHITE
WHITE
Gas Valve
Red
Blue White Green/
Yellow
Red
Pluggable Drive
Motor Switch
GAS DRYER

TECH SHEET - DO NOT DISCARD PAGE 3
FOR SERVICE TECHNICIAN'S USE ONLY PART NO. 3980060
120 VOLTS
FS2
FS1
VALVE
NO. 1
IG IGR IGNITOR
50-500
HOLD ASSIST
MAIN
22,000 BTU/HR
VALVE
NO. 2
4
13
2
5
FLAME
SENSOR
L1 LINE - BLACK WHITE - NEUTRAL N
DOOR
SWITCH
RED
DRIVE MOTOR
4M MAIN
2.4 - 3.6
START
2.4 - 3.8
5M
6M
BLACK DL
THERMAL FUSE
196°F (91°C)
HIGH LIMIT
THERMOSTAT
205°F (96°C)
DRUM LAMP
NC
3M
BLUE
BROWN
BELT
SWITCH
WHITE
BLUE
3V
BLUE
1V
HS1 HS2
TF1 TF2
THERMISTOR
ELECTRONIC
CONTROL
DOOR
TEMP.
BK
MODEL RTN
L1
USER INTERFACE
(ACTIVE OVERLAY or
ALTERNATE TECHNOLOGY)
MOTOR
HEATER RTN
HEATER +V
10k ± 3%
P3
P4
P1-3
P2-5
P2-4
P1-4
P1-5
HEATER
RELAY
NEUTRAL P1-2 NEUTRAL
MODEL P2-3
N.O.
(0.250 TERMINAL)
COM
(0.250 TERMINAL)
N.C.
TEMP RTN P2-6
P2-7
MOIST RTN
MOIST. P2-1
P2-2
G
SENSOR
MOVS
VALVE
MOV
GRN/YEL
P1-1
WHITE
WHITE
BLK
BLK
BLK
YEL/RED
RED/WHT
RED
120 VOLTS
240 VOLTS
BLACK
L1 LINE - - LINE L2RED
WHITE
N
2M
1M
DOOR
SWITCH
- NEUTRAL
RED/WHITE
NC
DRIVE MOTOR
1/3 H.P.
4M MAIN
START
5M
6M
THERMISTOR
BLACK DL
HEATER
RED BLACK
CONTROL
THERMAL CUT-OFF
(TCO) 352° F (178° C)
NEUTRAL
TERMINAL
LINKED TO
CABINET
CENTRIFUGAL SWITCH
THERMAL FUSE
196° F (91° C)
HIGH LIMIT
THERMOSTAT
250° F (121° C)
DOOR
DRUM LAMP
MOIST RTN
MOIST.
TEMP.
SENSOR
NC
3M
NO
COM
G
BLUE
BK
RED
BROWN
BLUE BLUE
BELT
SWITCH
WHITE
MODEL RTN
L1
USER INTERFACE
(ACTIVE OVERLAY or
ALTERNATE TECHNOLOGY)
MOTOR
HEATER RTN
HEATER +V
10k ± 3%
P3
P4
P1-3
P2-1
P2-2
P2-5
P2-4
P1-4
P1-5
HEATER
RELAY
NEUTRAL P1-2 NEUTRAL
MODEL
P2-3
N.O.
(0.250 TERMINAL)
COM
(0.250 TERMINAL)
N.C.
TEMP RTN
P2-6
P2-7
G
SENSOR
MOVS
GRN/YEL
P1-1
YEL/RED
BLK
RED/WHT
BLK
WHITE
WHITE
7.8-11.8
BLUE
WHITE
BLUE
BLK
SENSOR
NC
NO
COM
2.4 - 3.6
2.4 - 3.8
CENTRIFUGAL
SWITCH
ELECTRONIC
ELECTRIC DRYER WIRING DIAGRAM IMPORTANT: Electrostatic (static electricity)
discharge may cause damage to machine
control electronics. See page 1 for details.
GAS DRYER WIRING DIAGRAM

PART NO. 3980060 FOR SERVICE TECHNICIAN'S USE ONLY
PAGE 4 TECH SHEET - DO NOT DISCARD
PROBLEM POSSIBLE CAUSE / TEST
NOTE: Possible Cause/Tests MUST be performed in the sequence shown for each problem.
WON’T POWER UP.
(No response when buttons are pressed.)
1. Supply connections. See TEST #1 below.
2. Check harness connections.
3. Control electronics and housing. See TEST #5, page 8.
WON’T START CYCLE WHEN START
BUTTON IS PRESSED.
1. If number display flashes, check to be sure the door is com-
pletely shut, and press and hold down START for about 1 second.
2. See TEST #2, page 5.
3. See TEST #6, page 9.
WON’T SHUT OFF WHEN EXPECTED. 1. Check PAUSE/CANCEL button. See TEST #5, page 8.
2. Control Electronics and housing. See TEST #5, page 8.
3. Moisture Sensor. See TEST #4, page 7.
CONTROL WON’T ACCEPT SELECTIONS. Control electronics and housing. See TEST #5, page 8.
WON’T HEAT. 1. Heater. See TEST #3, page 5.
2. Check harness connections.
3. Check installation.
HEATS IN AIR CYCLE. Thermistor. See TEST #3a, page 6.
SHUTS OFF BEFORE CLOTHES ARE DRY. Moisture Sensor. See TEST #4, page 7.
TROUBLESHOOTING GUIDE
Some tests will require accessing components. See figure 14, page 9, for component locations.
GAS DRYER
1. After removing the cover plate, check
that the power cord is firmly connected to
the dryer's wire harness. See figure 4.
2. Access the machine control electronics
without disconnecting any wiring to the
control board. See page 10, figure 17.
3. With an ohmmeter, check for continuity
between the neutral (N) terminal of the
plug and P1-2 (white wire) on the ma-
chine control board. The left-hand side of
figure 5 shows the position of the neutral
terminal (N) on the power cord's plug.
➔If there is continuity, go to step 4.
➔If there is no continuity, disconnect
the white wire of the harness from the
power cord at the location illustrated
in figure 4. Test the continuity of the
power cord's neutral wire as
illustrated in Figure 5. If an open
circuit is found, replace the power
cord. Otherwise, go to step 4.
4. In a similar way, check the continuity
between the L1 terminal of the plug and
P1-5 (black wire) on the control board.
➔If there is continuity, replace the
control board.
➔If there is no continuity, check the
continuity of the power cord in a
similar way to that illustrated in
figure 5, but for power cord's L1 wire.
➔If an open circuit is found, replace the
power cord. Otherwise, go to step 5.
5. Replace the main harness.
TROUBLESHOOTING TESTS
NOTE: These checks are done with the
dryer disconnected from power.
TEST #1
Supply Connections
This test assumes that proper voltage is
present at the outlet, and visual inspection
indicates that the power cord is securely
fastened to the terminal block (electric dryer)
or wire harness connection (gas dryer).
Remove the cover plate from the top right
corner of the back of the dryer, before doing
the checks. See figure 2.
ELECTRIC DRYER
1. With an ohmmeter, check for continuity
between the neutral (N) terminal of the
plug and the center contact on the
terminal block. See figure 3.
➔If there is no continuity, replace the
power cord and test the dryer.
➔If there is continuity, go to step 2.
2. In a similar way, check which terminal of
the plug is connected to the left-most
contact on the terminal block and make a
note of it. This will be L1 (black wire) in
the wiring diagram. See figure 3.
➔When this is found, go to step 3.
➔If neither of the plug terminals have
continuity with the left-most contact of
the terminal block, replace the power
cord and test the dryer.
3. Access the machine control electronics
without disconnecting any wiring to the
control board. See page 10, figure 17.
4. With an ohmmeter, check for continuity
between the L1 terminal of the plug
(found in step 2) and P1-5 (black wire)
on the machine control board.
➔If there is continuity, go to step 5.
➔If there is no continuity, check that
wires to the terminal block are me-
chanically secure. If so, replace the
main wire harness and test the dryer.
5. Check for continuity between the neutral
(N) terminal of the plug and P1-2 (white
wire) at the control board.
➔If there is continuity, go to step 6.
➔If there is no continuity and the
mechanical connections of the wire
are secure, replace the main wire
harness.
6. Replace the machine control electronics.
See Removing the Machine Control
Electronics, page 10.
COM
NL1
Power Cord
Plug Te r minal Block
Figure 3.
Plug-to-terminal connections
for electric dryer.
COM
N
N
G
L1
G
L1
Power Cord
Plug
Figure 5.
Power cord terminals, gas
dryer.
Power Cord
Wire
Harness
Figure 4.
Power cord-to-wire harness
connection for gas dryer.
Remove
Screw
Te r minal
Block Cover
Figure 2.
Remove the cover plate.

TECH SHEET - DO NOT DISCARD PAGE 5
FOR SERVICE TECHNICIAN'S USE ONLY PART NO. 3980060
TEST #2
Motor Circuit Test
This test will check the wiring to the motor
and the motor itself. The following items are
part of this system:
Part of Motor System Electric
Dryer Gas
Dryer
–Harness/connection
–Thermal fuse
–Belt/belt switch
–Motor
–Door switch
–Machine control
electronics. See ESD
information, page 1.
✔
✔
✔
✔
✔
✔
✔
no
✔
✔
✔
✔
1. Disconnect dryer from power. Access the
machine control electronics and measure
the resistance across P1-3 and P1-4.
See Accessing & Removing the Elec-
tronic Assemblies, page 10.
➔If resistance across P1-3 and P1-4 is
in the range of 2 to 4 ohms, replace
the machine control electronics.
➔Otherwise, go to step 2.
2. Check the wiring and components in the
path between these measurement points
by referring to the appropriate wiring
diagram (gas or electric) on page 3.
ELECTRIC DRYER ONLY: Check the
thermal fuse. See TEST #3b, page 7.
ALL DRYERS: Continue with step 3
below to test the remaining components
in the motor circuit.
3. Check the belt switch and motor. Access
the belt switch and motor by removing
the back panel. See page 11. Carefully
remove the drum belt from the spring-
loaded belt switch pulley, gently letting
the belt switch pulley down. See figure 6.
4. Remove the white connector from the
drive motor switch. See figure 7.
5. Using figure 8, check for the resistance
values of the motor’s Main and Start
winding coils as shown below.
NOTE: Main and Start winding coils must
be checked at the motor.
WINDING RESISTANCE
(Ω)
CONTACT POINTS
OF MEASUREMENT
MAIN 2.4
Ω
-3.6
Ω
Blue wire in back and
white/orange wire
START 2.4
Ω
-3.8
Ω
Blue wire in back and
violet wire
➔If the resistance at the motor is
correct, then there is an open circuit
between the motor and machine
control electronics. Check for failed
belt switch.
6. Check the belt switch by measuring
resistance between the two blue wires,
as shown in figure 9, while pushing up
the belt switch pulley.
➔If the resistance reading goes from
infinity to a few ohms as pulley arm
closes the switch, belt switch is OK.
If not, replace the belt switch.
➔If belt switch is OK and there is still an
open circuit, check and repair the
wiring harness.
➔If the Start winding is in question and
the resistance is much greater than
4Ωs, replace the motor.
7. Door Switch problems can be uncovered
in the Diagnostic Door Switch Test on
page 1; however, if this was not done,
the following can be done without
applying power to the dryer. Connect
an ohmmeter across P1-2 (neutral,
white wire) and P1-3 (door, blue wire).
With the door properly closed, the
ohmmeter should indicate a closed
circuit (0-2 ohms). If not, replace the door
switch assembly.
TEST #3
Heater Test
NOTE: These tests are done with dryer
disconnected from power.
This test is performed when either of the
following situations occur:
✔Dryer doesn’t heat
✔Heat won’t shut off
This test checks the components making up
the heating circuit. The following items are
part of this system:
Part of Heating System Electric
Dryer Gas
Dryer
–Harness/connection
–Heater relay
–Thermal cut-off
–Thermal fuse
–High limit thermostat
–Heat element assembly
–Gas burner assembly
–Centrifugal switch
–Thermistor
–Machine control
electronics. See ESD
information, page 1.
–Console electronics
–Gas supply
✔
✔
✔
no
✔
✔
no
✔
✔
✔
✔
no
✔
✔
no
✔
✔
no
✔
✔
✔
✔
✔
✔
Belt SwitchBelt Switch
Pulley
Blue Wires
Figure 9.
Checking the belt switch.
Main Winding:andBlue Wire in Back
White/Orange Wire
Start
Winding:
and
Blue Wire
in Back
Violet Wire
Figure 8.
Main and start winding
measure points.
White Connector
Drive Motor
Switch
Figure 7.
Remove white connector.
Drum Belt
Belt Switch
Pulley
Figure 6.
Carefully remove drum belt.

PART NO. 3980060 FOR SERVICE TECHNICIAN'S USE ONLY
PAGE 6 TECH SHEET - DO NOT DISCARD
Dryer does not heat:
Remove the toe panel to access the thermal
components. See figure 15, page 10. Locate
the components for the electric and gas
dryers using figure 10 below.
ELECTRIC DRYER:
1. Using an ohmmeter and referring to the
wiring diagram, measure the resistance
from the red wire at the thermal cutoff to
the red wire at the heater.
➔If the resistance is about 10 ohms, go
to step 3.
➔If an open circuit is detected, go to
step 2.
2. Visually check the wire connections to
the thermal cutoff, high limit thermostat,
and heater. If connections look good,
check for continuity across each of these
components. Replace the one that is
electrically open.
3. If no open circuit is detected, measure
the resistance between P2-5 (red/white
wire) and P2-6 (black wire) at the
machine control board.
➔If 6-7 k ohms are measured, replace
the machine control electronics.
➔If the resistance is less than 1 k ohm,
replace the thermistor.
GAS DRYER:
1. Perform TEST #3b, page 7. If the thermal
fuse is OK, go to step 2.
2. Locate the high limit thermostat. See
figure 10. Measure the continuity through
it by connecting the meter probes on the
red wire and blue wire.
➔If there is an open circuit, replace the
high limit thermostat.
➔Otherwise, go to step 3.
3. Perform TEST #3d (Gas Valve Test),
page 7. If this is OK, replace the machine
control electronics.
Heat will not shut off:
1. Access the machine control electronics,
and measure the resistance between
P2-5 (red/white wire) and P2-6 (black
wire). See Accessing & Removing the
Electronic Assemblies, page 10.
➔If 6-7 k ohms are measured, replace
the machine control electronics.
➔If the resistance is much greater than
7 k ohms, replace the thermistor.
TEST #3a
Thermistor Test
The machine control electronics monitors
the exhaust temperature using the
thermistor, and cycles the heater relay on
and off to maintain the desired temperature.
Begin with an empty dryer and a clean lint
screen.
1. Plug in the dryer and set the following
configuration:
➔Door - must be firmly closed
➔Press TIMED DRY
➔Press END OF CYCLE SIGNAL
(HIGH)
➔Press START
2. If after 60 seconds, E1 or E2 flashes in
the display and the dryer shuts off, the
thermistor or wire harness is either
shorted or open.
➔Disconnect dryer from power. Check
wire connections at the machine
control electronics and thermistor.
See Accessing the Machine Control
Electronics on page 10, and for
thermistor location see figure 10
below.
➔If wire connections are good, remove
the two wires from the thermistor and
replace the thermistor. See figure 10.
Plug dryer back into supply outlet.
3. If E1 or E2 does not flash in the display,
the connections to the thermistor are
good. Therefore, check the thermistor’s
resistance value at any or all of the
temperature levels in question, using the
Timed Dry Cycle, and the following
process:
Hold a glass bulb thermometer capable
of reading from 90° to 180°F (32° to
82°C) in the center of the exhaust outlet.
The correct exhaust temperatures are as
follows:
EXHAUST TEMPERATURES
TEMPERATURE
SETTING HEAT TURNS
OFF HEAT TURNS
ON
HIGH 155°
±
10°F
(68°
±
6°C)
10 - 15°F
(6 - 8°C)
below the heat
turn off
temperature
MEDIUM HIGH 150°
±
10°F
(66°
±
6°C)
MEDIUM 140°
±
10°F
(60°
±
6°C)
LOW 125°
±
10°F
(52°
±
6°C)
EXTRA LOW 105°
±
5°F
(41°
±
3°C)
4. If the exhaust temperature is not within
specified limits, check the resistance of
the thermistor.
NOTE: All thermistor resistance
measurements must be made while
dryer is disconnected from power.
The table below gives the resistance
values that should be observed for the
various temperature settings.
TEMP.
SETTING TEMPERATURE
Thermistor resistance
value at heater
shutoff (digital or
analog meter) k
Ω
HIGH 155°
±
10°F
(68°
±
6°C) 2.5 1.5
MEDIUM
HIGH 150°
±
10°F
(66°
±
6°C) 3.0 2.7
MEDIUM 140°
±
10°F
(60°
±
6°C) 4.0 3.0
LOW 125°
±
10°F
(52°
±
6°C) 54.3
EXTRA
LOW 105°
±
5°F
(41°
±
3°C) 65
Thermal Cut-Off
High Limit Thermostat
Heater Element
Flame
Sensor
High Limit
Thermostat
Thermal Fuse
Thermistor
Thermal Fuse
Thermistor
Figure 10.
Thermal Components, viewed from front.
Gas DryerElectric Dryer

TECH SHEET - DO NOT DISCARD PAGE 7
FOR SERVICE TECHNICIAN'S USE ONLY PART NO. 3980060
If needed, the following table gives
temperatures and their associated
resistance values.
THERMISTOR RESISTANCE
TEMP.
°F (°C) RES.
k
Ω
TEMP.
°F (°C) RES.
k
Ω
50° (10°) 19.9 80° (27°) 9.2
60° (16°) 15.3 90° (32°) 7.4
70° (21°) 11.9 100° (38°) 5.7
➔If the thermistor resistance checks
within normal limits, replace the
machine control electronics.
TEST #3b
Thermal Fuse Test
1. Disconnect dryer from power.
2. Access the thermal fuse by first remov-
ing the toe panel. See Removing the Toe
Panel, page 10, and figure 10 on page 6
for thermal fuse location.
ELECTRIC DRYER:The thermal fuse is
wired in series with the dryer drive motor. If
the thermal fuse is open, replace it.
GAS DRYER:The thermal fuse is wired in
series with the dryer gas valve. If the thermal
fuse is open, replace it.
TEST #3c
Thermal Cut-Off Test, Electric
Dryer Only
If the dryer does not heat while 240 volts is
being delivered to it, check the status of the
thermal cut-off.
1. Disconnect dryer from the 240V supply.
2. Access the thermal cut-off by first
removing the toe panel. See Removing
the Toe Panel, page 10.
3. Using an ohmmeter, check the continuity
across the thermal cut-off. See figure 10
for location.
➔If the ohmmeter indicates an open
circuit, replace the failed thermal
cut-off and high limit thermostat. In
addition, check for failed heat
element, or blocked or improper
exhaust system.
TEST #3d
Gas Valve Test, Gas Dryer Only
Access the gas valve by first removing the
toe panel. See Removing the Toe Panel,
page 10.
Useanohmmeter to determine if a gas
valve coil has failed. Remove harness
plugs. Measure resistance across
terminals. Readings should match those
shown in the following chart. If not, replace
coil.
Terminals Resistance
1to2 1365
Ω±
25
1to3 560
Ω±
25
4to5 1220
Ω±
50
IMPORTANT:
Be sure all harness
wires are looped back
through the strain relief
after checking or replacing coils.
TEST #4
Moisture Sensor Test
NOTE: This test is started with the machine
completely assembled.
This test is performed when an automatic
cycle stops too soon, or runs much longer
than expected.
NOTE: Dryer will shut down automatically
after 2½ hours.
The following items are part of this system:
–Harness/connection
–Metal sensor strips
–Machine control electronics
1. Enter the Diagnostic Test mode. See
procedure on page 1.
2. Open the dryer door. If a beep tone is
heard and a software revision number is
displayed on the console as soon as the
door is opened, a short circuit exists in
the moisture sensor system.
➔If this doesn't happen, go to step 3.
➔Otherwise, go to step 4.
NOTE: Over drying may be caused by a
short circuit in the sensor system.
3. Locate the two metal sensor strips on the
face of the lint screen housing. Bridge
these strips with a wet cloth or finger.
➔If a beep tone is heard and a software
revision number is displayed on the
console, the sensor passes the test.
Go to step 4.
➔If not, disconnect dryer from power.
Access the moisture sensor wires by
removing the toe panel (page 10,
figure 15) and disconnecting the
sensor wires from the harness
(figure 11). Go to step 7.
4. Disconnect dryer from power. Access the
machine control electronics. See page
10. Remove the connector P2 from the
circuit board. Measure the resistance
across terminals 1 (yellow/red wire)
and 2 (black wire).
➔If the ohmmeter does not indicate
(infinity) open circuit, go to step 5.
➔Otherwise, measure the resistance
across between pins 1 and 2 of
connector P2 on the machine control
board. If a resistance less than 1 MΩ
is measured (with analog or digital
ohmmeter), inspect the control board
for any debris bridging these pins. If
no debris, replace the machine
control electronics.
5. Access the moisture sensor by removing
the toe panel (see Removing the toe
panel, page 10). Disconnect the sensor
from the wire harness. See figure 11.
Measure the resistance
across the outermost
contacts of the cable that
includes the two red MOVs.
➔If a small resistance is measured,
replace this component (Wire
Harness, Moisture Sensor).
➔Otherwise go to step 6.
6. Measure the resistance across the pins
of the mating connector. If a small
resistance is measured here, replace this
harness (Digital Wire Harness).
7. Measure the resistance
across each of the outermost
contacts and the center
terminal (ground connection).
➔If a resistance less than infinity is
measured, replace this component
(Wire Harness, Moisture Sensor).
8. If moisture sensor diagnostic test
passes, check the thermistor: Perform
TEST #3a, page 6.
➔If the problem persists after replacing
the moisture sensor and thermistor,
replace the machine control
electronics.
Blower
Housing
Drum
Harness
Connection
FRONT
Figure 11.
Disconnect sensor from
wire harness.

PART NO. 3980060 FOR SERVICE TECHNICIAN'S USE ONLY
PAGE 8 TECH SHEET - DO NOT DISCARD
TEST #5
Button and LED Test
Refer to the Diagnostic Test on page 1 and
activate the Diagnostic Test Mode. Check for
the following situations:
✔None of the LEDs light up
✔A particular group of LEDs does
not light up
✔A single LED does not light up
✔No beep sound is heard
✔No dryer function is activated
when a particular button is
pressed
✔E3 error code is displayed
None of the LEDs light up:
1. See Diagnostic Guide/Before Servicing...
on page 1.
2. Visually check that connectors P3 and
P4 are inserted all the way into the
machine control electronics. See
Accessing the Machine Control
Before replacing the machine control electronics,
check for proper button function as follows:
■Disconnect the power cord from the outlet.
■See Accessing the Machine Control
Electronics on page 10 and remove
connectors P3 and P4 from the machine
control electronics (see figure 13, page 9, for
connector locations).
Using the table at right, measure the resistance
across the switch when the button is pressed.
NOTE: The meter must be connected with the
proper polarity.
➔If the meter responds to the button being
pressed, it indicates the button is
operating. The button is a momentary
connection, so the meter can respond only
while the button is being pressed.
➔If any switches fail this test, replace the
console electronics and housing.
➔If all switches test OK, replace the machine
control electronics. See page 10.
BUTTON + LEAD – LEAD
HEAVY DUTY P3-14 P3-11
JEANS P3-14 P3-9
NORMAL P3-13 P3-11
TEMPERATURE P3-12 P3-8
CASUAL P3-12 P3-11
ULTRA DELICATE P3-14 P3-10
EXPRESS DRY P3-13 P3-10
DELICATE P3-12 P3-10
TIMED DRY P3-13 P3-9
DAMP DRY SIGNAL P3-14 P3-8
WRINKLE GUARD P3-13 P3-8
TOUCH UP P3-12 P3-9
AUTO DRY LEVEL P3-14 P3-7
MORE TIME P3-13 P3-7
LESS TIME P3-12 P3-7
END OF CYCLE SIGNAL P3-12 P4-2
START P3-14 P4-2
PAUSE/CANCEL P3-13 P4-2
CHECKING FUNCTIONS OF BUTTONS
Electronics on page 10. If these
connections are good, perform the
checks described in Checking Functions
of Buttons in box above.
A particular group of LEDs does not
light up:
A group or combination of LEDs share a
common electronic connection. If this
connection is open, all of the LEDs in the
group will be disabled. Replace the console
electronics and housing.
A single LED does not light up:
Press the button associated with the LED
several times. If the LED does not light up, the
LED has failed. Replace the console
electronics and housing.
No beep sound is heard:
If the associated LEDs do light up, it is
possible that the beeper circuit has failed.
Check button functioning (see box above)
before replacing the machine control
electronics.
No dryer function is activated when
a particular button is pressed:
If the associated LEDs do light up, it is
possible that the machine control electronics
has failed. Check button functioning (see box
above) before replacing the machine control
electronics.
E3 error code is displayed:
If the E3 error code is displayed, there is a
user interface or software mismatch. It is also
possible that a component on the console
electronics or the machine control electronics
has failed. Check button functioning (see box
above) before replacing the machine control
electronics.

TECH SHEET - DO NOT DISCARD PAGE 9
FOR SERVICE TECHNICIAN'S USE ONLY PART NO. 3980060
TEST #6
Door Switch Test
Go into the Diagnostic Test Mode. See
page 1. Functionality is verified with a beep
each time the door is closed and opened,
and a number and letter appears in the
display (i.e., “0E”, “0G”, “1E”, or “2G” etc.).
➔If any of the above conditions are not
met, or if one of the dryer model
codes listed above is displayed when
the door is closed, check that the
wires between the door switch and
machine control electronics are
connected. See figure 12 below for
switch location, and see Accessing
the Machine Control Electronics,
page 10.
➔If the connections are OK, replace the
wire and door switch assembly and
retest.
➔If wire and door assembly have been
replaced and dryer still does not start,
then replace the machine control
electronics.
Moisture Sensor
Strips
Heater
Assembly
Door
Switch
■
Machine Control Electronics
Moisture Sensors
Thermistor
Thermal Cut-off
Thermostat
Assembly (Electric or Gas)
■
■
■
■
■
Heater
Drum Light Assembly
■
■
Blower/Motor Assembly
■
Console Electronics
and Housing
See Accessing & Removing the
Electronic Assemblies, page 10, to access:
See Removing the Back
Panel, page 11, to access:
See Removing the Toe Panel,
page 10, to access:
Figure 14.
Component locations
P/N XXXXXXX Rev X
Date Code YDDD
Green/
Yellow
White Blue
Black
Console
Mounting
Screw
Open
N.O.
COM
Blue Black
Red/White Open (Elec.)
Black (Gas) Yellow/Red
Black
Heater
Relay
Motor
Relay
Figure 13.
Machine control electronics
Door Switch
TOP OF
DRUM
FRONT
Figure 12.
Door switch location.

PART NO. 3980060 FOR SERVICE TECHNICIAN'S USE ONLY
PAGE 10 TECH SHEET - DO NOT DISCARD
REMOVING THE TOE PANEL
1. Remove two screws below the toe panel.
2. Slide the toe panel down, then pull it out
from the bottom. See figure 15.
ACCESSING & REMOVING
THE ELECTRONIC
ASSEMBLIES
There are two electronic assemblies; the
Console Electronics and Housing, and the
Machine Control Electronics. See figure 16.
Accessing the Machine Control
Electronics
1. After locating the machine control
electronics, remove the three screws that
hold the machine control bracket in place
and remove assembly. See figure 17.
2. As you remove the assembly from its
mounting position, rotate the assembly
up to access the machine control circuit
board, and set it on the side panel. See
figure 18.
Removing the Machine Control
Electronics
Remove all the wire connections to the
machine control board. See figure 13,
page 9.
There are two plastic legs on each side of
the circuit board that fasten it to the
mounting bracket. With pliers, squeeze the
leg while pulling up until it becomes
unlatched from the mounting bracket. Do
this at all four plastic legs, then lift the circuit
board from mounting bracket.
Accessing the Console Electronics
and Housing
1. After locating the machine control
electronics, disconnect the ribbon cables
that run between the console and the
machine control board. Make the
disconnection at the machine control
side. Remove the two screws that fasten
the console assembly to dryer. Then
remove the console assembly, sliding it
up and off from the front of the machine.
See figure 19.
Machine Control
Electronics Assembly
Console Electronics
and Housing (inside)
FRONT
Figure 16.
Locate the electronic
assemblies.
FRONT
Machine Control
Electronics
Assembly
Figure 17.
Remove assembly from
mounting position.
FRONT
Machine Control
Electronics
Assembly
Figure 18.
Rotate assembly up to
access the machine control circuit board.
Flange
Figure 15.
Pull the toe panel down to
clear flanges, then pull panel out.
Ribbon Cable Connection Point
Ribbon Cable
FRONT
Figure 19.
Rotate assembly up to
access the machine control circuit board.

TECH SHEET - DO NOT DISCARD PAGE 11
FOR SERVICE TECHNICIAN'S USE ONLY PART NO. 3980060
2. Remove the screws that fasten the
console mounting bracket onto the
assembly. Lift up and remove the bracket
to locate the electronics assembly. See
figure 20.
3. The console electronics and housing as-
sembly is held to the decorative piece by
seven plastic latches. See figure 21.
4. Unlatch them gently with a screw driver
while pulling the electronics housing
assembly out. See figure 22.
5. Gently pull the console electronics
housing away from the decorative piece.
See figure 23.
REMOVING THE BACK
PANEL
After removing the top panel, remove the
cover plate. Then remove ten screws from
the back panel, plus two screws on the back
panel’s top edge, which connect the back
panel to the side panels’ top edges. See
figure 24.
ELECTRIC DRYER:In addition to the
above, remove the ground wire and screw
from back panel. Also disconnect the power
cord from the terminal block, and then
remove the terminal block from the back
panel.
Ground Screw Location -
Electric Models Only Cover Plate
Figure 24.
Remove 12 screws (13 for
electric models).
Figure 21.
Locate seven plastic latches.
Figure 22.
Unlatch gently with
screwdriver.
Console electronics
and housing
Decorative piece
Figure 23.
Gently pull console housing
away from decorative piece.
Console
Mounting Bracket
Console Electronics and
Housing Assembly
Figure 20.
Remove mounting bracket
and locate electronics assembly.

PART NO. 3980060 FOR SERVICE TECHNICIAN'S USE ONLY
PAGE 12 TECH SHEET - DO NOT DISCARD
MANUFACTURED UNDER ONE OR MORE
OF THE FOLLOWING U.S. PATENTS:
4,385,452
4,430,809
4,663,861
4,669,200
4,700,495
4,720,925
4,754,556
4,821,535
4,840,285
4,865,366
4,899,264
4,899,464
4,908,959
5,066,050
5,243,771
5,560,120
5,636,453
5,651,188
5,664,339
D314,261
D314,262