Ls 002
2013-06-19
: Pdf Ls 002 ls_002 spec products prescolite
Open the PDF directly: View PDF
.
Page Count: 2

DATE: TYPE:
FIRM NAME:
PROJECT:
A D v s on of Hubbe L ght ng, Inc.
In a continuing effort to offer the best product possible we reserve the right to change, without
notice, specifications or materials that in our opinion will not alter the function of the product.
Web: www.prescolite.com • Tech Support: (888) 777-4832
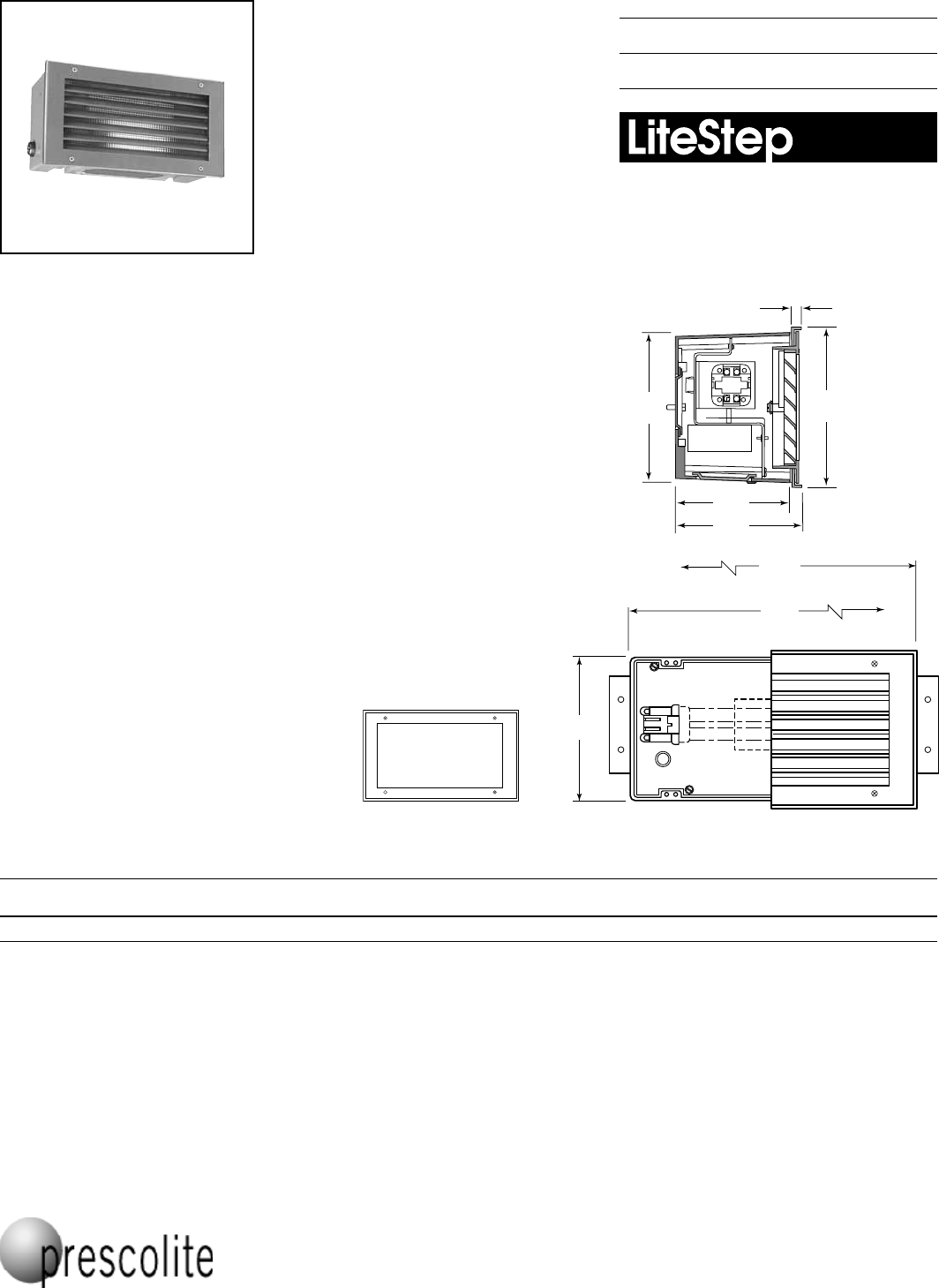
Recessed Step Light
37CFQ13EB
One 13W Quad Tube Compact
Fluorescent Lamp
Non-IC Rated
120V, 208V, 240V, or 277V For conversion to millimeters,
multiply inches by 25.4
Not to Scale
LS-002
❑ 37CFQ13EB
13W quad tube CFL,
Non-IC, recessed
step light
HOUSING HOUSING OPTION – FACEPLATE FINISH FACEPLATE OPTION
APPLICATIONS:
The 37CFQ13EB compact fluorescent
step light is a heavy-duty, energy efficient
step light for a wide variety of interior and
exterior applications. Fully gasketed, the
37CFQ13EB luminaire is approved for wet
or concrete pour applications.
HOUSING:
Diecast aluminum housing with white
baked enamel finish.
FACEPLATE:
Die cast aluminum faceplates are available
with a choice of louvered with a prismatic
glass lens (LF) or open with a prismatic
glass lens (OF). Available in black (BL),
bronze (BZ), white (WH) or Prescolite’s
exclusive Zet (Z, metallic silver) finish.
BALLAST:
One (1) multi-volt (120V thru 277V) compact
fluorescent class “P” electronic ballast suit-
able for operating 13W quad tube lamps.
Ballast is accessible through the housing for
servicing. See reverse side for additional
ballast information.
LAMP:
One (1) 13W (G24q-1 base) 4-pin quad
tube compact fluorescent lamp. Lamp
furnished by others.
SOCKET:
One (1) injection molded socket (G24q-1
base) suitable for 13W quad tube lamps.
INSTALLATION:
Galvanized steel mounting brackets are
included.
LABELS/WEIGHT:
U.L., CSA approved for wet locations and
concrete pour. Contact Technical Support
for questions. Approved for exterior/
interior installations. Non-IC rated.Consult
factory for N.Y. City approval.
❑ TW
Through wiring
capability
❑ CDN 120V
Canadian electrical
code compliant
ballast disconnect
❑ CDN 347V
Canadian electrical
code compliant
ballast disconnect
❑ LF
Diecast aluminum
louvered faceplate
with prismatic lense
❑ OF
Diecast aluminum
open faceplate with
prismatic lense
❑ BL
Black
❑ BZ
Bronze
❑ WH
White
❑ Z
Zet, metallic
silver
❑ TPS
Tamper proof screws
101/8”
105/8”
51/8”
51/8”
49/32”
37/8”
11/32”
55/8”
Louvered Faceplate (LF)
Open Faceplate (OF)
CATALOG NUMBER: EXAMPLE: 37CFQ13EB - LFZ TPS

Web: www.prescolite.com • Tech Support: (888) 777-4832
701 Millennium Blvd., • Greenville, SC 29607 U.S.A. • Phone (864) 678-1000
Prescolite is a division of Hubbell Lighting, Inc., with representatives’ offices throughout North America
Copyright ©2013 Prescolite, All Rights Reserved • Specica ions subject to change without notice. • Printed in U.S.A. • LS-002 • 4/9/13
PHOTOMETRIC DATA LiteStep
Step Light - 37CFQ13EB
LAMP DATA
Rated Watts 13W
Rated Lumens 860
Efficacy (LPW) 66
Rated Life (hours) 10,000
CRI 82
Min. Starting Temp. 0
°
F
Base (4 Pin) G24q-1
BALLAST DATA 13W
120V 277V
Total System Watts 16W 17W
Input Current (Amps) 0.14 0.06
Input Frequency in Hz 50/60 50/60
Power Factor >97% >97%
Ballast Factor >98% >98%
Total Harmonic Distortion <10% <10%
Minimum Starting Temp. -18°C (0°F) -18°C (0°F)
NOTES
Refer to www.prescolite.com for additional photometric tests (IES
Files).