Pelco Dvr Dx4500 Users Manual Pelco_DX4500_DX4600_Hard_Disk_Drive_Installation_Instructions_manual
DX4500 to the manual 8f50366f-c5a1-4261-9906-99828b3b2924
2015-02-02
: Pelco Pelco-Pelco-Dvr-Dx4500-Users-Manual-440724 pelco-pelco-dvr-dx4500-users-manual-440724 pelco pdf
Open the PDF directly: View PDF
.
Page Count: 20

Digital Video Recorder
DX8100 C2676M (9/07)
DX4500/DX4600 Series
Hard Disk Drive
Installation Instructions
2C2676M (9/07)

C2676M (9/07) 3
Contents
Important Safety Instructions. . . . . . . . . . . . . . . . . . . . . . . . . . . . . . . . . . . . . . . . . . . . . . . . . . . . . . . . . . . . . 5
Introduction. . . . . . . . . . . . . . . . . . . . . . . . . . . . . . . . . . . . . . . . . . . . . . . . . . . . . . . . . . . . . . . . . . . . . . . . . . . 6
Before You Begin . . . . . . . . . . . . . . . . . . . . . . . . . . . . . . . . . . . . . . . . . . . . . . . . . . . . . . . . . . . . . . . . . 6
Parts List and Tools . . . . . . . . . . . . . . . . . . . . . . . . . . . . . . . . . . . . . . . . . . . . . . . . . . . . . . . . . . 7
Installing a Hard Disk Drive . . . . . . . . . . . . . . . . . . . . . . . . . . . . . . . . . . . . . . . . . . . . . . . . . . . . . . . . . . . . . . 8
Opening the Chassis. . . . . . . . . . . . . . . . . . . . . . . . . . . . . . . . . . . . . . . . . . . . . . . . . . . . . . . . . . . . . . . 9
Slot Assignments and Component Layout . . . . . . . . . . . . . . . . . . . . . . . . . . . . . . . . . . . . . . . . . . . . . 11
Removing the Mounting Basket. . . . . . . . . . . . . . . . . . . . . . . . . . . . . . . . . . . . . . . . . . . . . . . . . . . . . 12
Removing the HDD . . . . . . . . . . . . . . . . . . . . . . . . . . . . . . . . . . . . . . . . . . . . . . . . . . . . . . . . . . . . . . . 13
Inserting the HDD. . . . . . . . . . . . . . . . . . . . . . . . . . . . . . . . . . . . . . . . . . . . . . . . . . . . . . . . . . . . . . . . 13
Reinstalling the Mounting Basket . . . . . . . . . . . . . . . . . . . . . . . . . . . . . . . . . . . . . . . . . . . . . . . . . . . 14
Reassembling the Unit . . . . . . . . . . . . . . . . . . . . . . . . . . . . . . . . . . . . . . . . . . . . . . . . . . . . . . . . . . . . . . . . . 15
Formatting. . . . . . . . . . . . . . . . . . . . . . . . . . . . . . . . . . . . . . . . . . . . . . . . . . . . . . . . . . . . . . . . . . . . . . . . . . . 16

4C2676M (9/07)
List of Illustrations
1 Installation Order of HDDs . . . . . . . . . . . . . . . . . . . . . . . . . . . . . . . . . . . . . . . . . . . . . . . . . . . . . . . . . 6
2 New Hard Disk Drive Found Dialog Box. . . . . . . . . . . . . . . . . . . . . . . . . . . . . . . . . . . . . . . . . . . . . . . . 7
3 Removing Power Cord from Wall. . . . . . . . . . . . . . . . . . . . . . . . . . . . . . . . . . . . . . . . . . . . . . . . . . . . . 8
4 Removing Power Cord from Back of Unit. . . . . . . . . . . . . . . . . . . . . . . . . . . . . . . . . . . . . . . . . . . . . . . 8
5 Disposable Wrist Strap . . . . . . . . . . . . . . . . . . . . . . . . . . . . . . . . . . . . . . . . . . . . . . . . . . . . . . . . . . . . 9
6 Removing the Chassis Cover . . . . . . . . . . . . . . . . . . . . . . . . . . . . . . . . . . . . . . . . . . . . . . . . . . . . . . . 10
7 Interior Slot Assignments and Components . . . . . . . . . . . . . . . . . . . . . . . . . . . . . . . . . . . . . . . . . . . 11
8 Removing the Data and Power Cables. . . . . . . . . . . . . . . . . . . . . . . . . . . . . . . . . . . . . . . . . . . . . . . . 12
9 Removing the Mounting Basket. . . . . . . . . . . . . . . . . . . . . . . . . . . . . . . . . . . . . . . . . . . . . . . . . . . . . 12
10 Removing the HDD from Mounting Basket . . . . . . . . . . . . . . . . . . . . . . . . . . . . . . . . . . . . . . . . . . . . 13
11 Reattaching HDD to Mounting Basket. . . . . . . . . . . . . . . . . . . . . . . . . . . . . . . . . . . . . . . . . . . . . . . . 13
12 Replacing the Mounting Basket. . . . . . . . . . . . . . . . . . . . . . . . . . . . . . . . . . . . . . . . . . . . . . . . . . . . . 14
13 Reconnecting the Data and Power Cables. . . . . . . . . . . . . . . . . . . . . . . . . . . . . . . . . . . . . . . . . . . . . 14
14 Replacing the Chassis Cover . . . . . . . . . . . . . . . . . . . . . . . . . . . . . . . . . . . . . . . . . . . . . . . . . . . . . . . 15
15 Application Window and GUI Toolbar . . . . . . . . . . . . . . . . . . . . . . . . . . . . . . . . . . . . . . . . . . . . . . . . 16
16 Hard Disk Drive Recovery in Progress Dialog Box . . . . . . . . . . . . . . . . . . . . . . . . . . . . . . . . . . . . . . . 17

C2676M (9/07) 5
Important Safety Instructions
Be sure to read familiarize manual and all safety instructions and before proceeding with the HDD
installation.
1. Read these instructions.
2. Keep these instructions.
3. Heed all warnings.
4. Follow all instructions.
5. Do not use this apparatus near water.
6. Do not block any ventilation openings. Install in accordance with the manufacturer’s instructions.
7. Only use attachments/accessories specified by the manufacturer.
8. Installation should be done only by qualified personnel and conform to all local codes.
9. CAUTION: These servicing instructions are for use by qualified service personnel only. To reduce
the risk of electric shock do not perform any servicing other that contained in the operating
instructions unless you are qualified to do so.
10. Only use replacement parts recommended by Pelco.
11. The unit must be properly shut down and turned off to install the system and video data drive.
WARNING: It is critical that the DX4500/DX4600 be unplugged for your safety. You must remove the
power cord because current continues to flow through the DX4500/DX4600 even when the unit is off.
First, unplug the power cord from the wall socket, then unplug it from the rear of the DVR.
12. Make sure you protect the unit and its components from electrostatic discharge (ESD).
The product and/or manual may bear the following marks:
This symbol indicates that dangerous voltage
constituting a risk of electric shock is present within
this unit.
This symbol indicates that there are important
operating and maintenance instructions in the
literature accompanying this unit.
WARNING: This product is sensitive to Electrostatic Discharge (ESD). To avoid ESD
damage to this product, use ESD safe practices during installation. Before touching,
adjusting or handling this product, correctly attach an ESD wrist strap to your wrist and
appropriately discharge your body and tools. For more information about ESD control and
safe handling practices of electronics, please refer to ANSI/ESD S20.20-1999 or contact
the Electrostatic Discharge Association (www.esda.org).
CAUTION:
RISK OF ELECTRIC SHOCK.
DO NOT OPEN.

6C2676M (9/07)
Introduction
Welcome to the hard disk drive (HDD) installation instructions for the DX4500/DX4600 Series digital video
recorder (DVR). Before you install the hard drive, familiarize yourself with all the instructions in this
manual.
The DX4508/DX4516 supports two HDDs and a storage capacity up to 1500 GB. The DX4608/DX4616
supports four HDDs and a storage capacity up to 3000 GB. There are three optional hard drive kits:
DX4546HDD250KIT (250 GB), DX4546HDD500KIT (500 GB), and DX4546HDD750KIT (750 GB).
BEFORE YOU BEGIN
Some DX4500/DX4600 DVRs are shipped without HDDs installed. To record video, you must first install at
least one HDD. Before you begin, verify whether your unit was shipped with our without a HDD.
If your unit was shipped with a HDD installed and data is stored on one or more of the HDDs, you must
ensure that the drives are reinstalled in the same position and connected to their original SATA
connectors.
NOTE: Hard disk drives are installed in a specific order at the factory (refer to Figure 1). When removing a
HDD, be sure to label the drive to ensure that it is reinstalled in the same location.
If the HDD is reinstalled in a different location, when the unit is restarted, the “New hard disk drive found”
dialog box opens prompting you to format the HDD (refer to Figure 2).
If you select OK, you will reformat the HDD, erasing all stored data. To avoid reformatting the HDD, click
Cancel.
Figure 1. Installation Order of HDDs
HDD 1: Connects to the SATA 1 connector
HDD 2: Connects to the SATA 2 connector
Mounting Basket A
HDD 3: Connects to the SATA 3 connector (supported for DX4600 only)
HDD 4: Connects to the SATA 4 connector (supported for DX4600 only)
Mounting Basket B

C2676M (9/07) 7
Figure 2. New Hard Disk Drive Found Dialog Box
PARTS LIST AND TOOLS
To install the HDD, you will also need a nonmagnetic Phillips screwdriver #1 and an optional small
container to store screws (not supplied).
Qty Description
1 Hard disk drive
1 Serial ATA cable for connecting the HDD to the motherboard
1 ESD disposable wrist strap and anti-static mat
2 Mounting screws for securing the HDD to the mounting basket
1 Installation manual

8C2676M (9/07)
Installing a Hard Disk Drive
1. Properly shut down the DX4500/DX4600 Series DVR. Refer to the installation manual or operation/
programming manual supplied with the unit.
2. Unplug the power cord from the wall socket.
Figure 3. Removing Power Cord from Wall
3. Remove the power cord from the back of the unit.
Figure 4. Removing Power Cord from Back of Unit
4. Disconnect any cables or connections that may restrict access or interfere with the removal of the
unit.
NOTE: The security surveillance service provided by the DX4500/DX4600 is interrupted when the unit is
taken offline.
5. (If applicable) Unscrew the fasteners that are securing the unit in the rack and carefully lift it out of
the rack.
WARNING: It is critical that the unit be unplugged for your safety. You must remove the power
cord because current continues to flow through the DX4500/DX4600 even when the unit is without
power. First, unplug the power cord from the wall socket, then unplug it from the rear of the DVR.
WARNING: The chassis assembly includes parts with sharp edges. To avoid injury, use caution
when working in and around the chassis and components.

C2676M (9/07) 9
OPENING THE CHASSIS
If the DX4500/DX4600 is mounted in a rack, it must be removed from the rack prior to HDD installation.
One person can lift and remove the DVR.
Make sure the unit is turned off and you are wearing a properly grounded ESD wrist strap before
attempting to open the chassis cover.
1. Ensure that the DVR and all of its components are protected against ESD. Before handling any
electronic components, you should take steps to ground yourself properly so that any built-up static
electric charges are dissipated away from the unit.
a. Cover all work areas with approved anti-static mats (supplied).
b. Attach the disposable wrist strap (supplied). Refer to Figure 5 and the included Safe Handling
of Hard Drives instructions (C2668M) for proper ESD procedures.
c. Attach the copper end of the wrist strap to an upainted surface of any grounded appliance.
An appliance is considered grounded if it can direct ESD to the earth, usually through its
power cable. An appliance that is plugged into an electrical outlet is considered grounded; a
unit is not considered grounded when it is unplugged.
WARNINGS:
• Do not touch the circuit board with your hand or a tool. Hold the HDD by the sides only.
• Do not wear grounding straps over clothing as clothing generates static electricity.
Figure 5. Disposable Wrist Strap
2. Move the DX4500/DX4600 to an area that will provide full access to its internal components.
COPPER END

10 C2676M (9/07)
3. Using a Phillips screwdriver, remove the chassis cover, and do the following:
a. Remove the top two screws on the left and right side panels of the DVR.
b. Remove the four silver screws (on the top of the unit) fastening the cover to the back of the
unit.
c. Carefully remove the chassis cover by sliding it back and up. Set aside the cover.
Figure 6. Removing the Chassis Cover

C2676M (9/07) 11
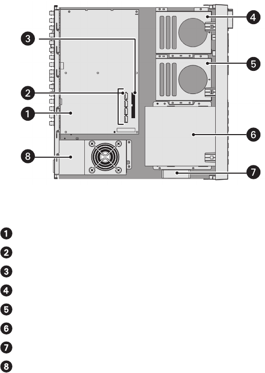
SLOT ASSIGNMENTS AND COMPONENT LAYOUT
Refer to Figure 7 for information about the DX4500/DX4600’s layout of major components.
Figure 7. Layout of Major Components
System Board
SATA 1–4 Connectors
CD/DVD System Board Cable
Mounting Basket (holds SATA drive 1 and 2)
Mounting Basket (holds SATA drive 3 and 4 for DX4608/DX4616)
CD/DVD Drive Location (mounting bracket supports one CD or DVD drive)
Chassis Exhaust Fan
Power Supply
SATA 1 SATA 2 SATA 3 SATA 4

12 C2676M (9/07)
REMOVING THE MOUNTING BASKET
If a HDD is already installed, go to step 1. If a HDD is not yet installed, go to step 2.
1. To remove the SATA HDD power connector and data cable do the following:
a. Grasp the top and bottom of the SATA power connector and carefully and simultaneously pull
straight back on the connector. Refer to Figure 8.
b. Grasp each side of the SATA data connector and carefully and simultaneously pull straight
back on the connector. Refer to Figure 8.
Figure 8. Removing the Data and Power Cables
2. To remove the HDD mounting basket do the following:
a. Using a Phillips screwdriver, unscrew the four screws that attach the mounting basket to the
chassis. Refer to Figure 9.
b. Gently lift the basket up and out with the drive(s) attached. Be careful not to force the basket
free or to disturb other components inside the unit. Refer to Figure 9.
Figure 9. Removing the Mounting Basket

C2676M (9/07) 13
REMOVING THE HDD
NOTE: It is recommended that you do not remove previously installed drives. If you do remove a drive for
any reason, be sure to note the arrangement of the drives within the drive basket and reinstall them in the
same order they appeared prior to removal. It is critical that drives be returned to the DX4500/DX4600 in
their original order.
1. To remove the HDD (if applicable) from the basket do the following:
a. Using a Phillips screwdriver, unscrew the screws that attach the drive to the basket.
b. Pull the drive out of the basket.
Figure 10. Removing the HDD from Mounting Basket
INSERTING THE HDD
1. To insert the HDD in the basket, do the following:
a. Position the drive in the basket.
b. Using a Phillips screwdriver, reinstall the screws to attach the drive to the basket.
c. (If necessary) Repeat steps a and b to insert another HDD.
Figure 11. Reattaching HDD to Mounting Basket

14 C2676M (9/07)
REINSTALLING THE MOUNTING BASKET
1. To reinstall the HDD mounting basket:
a. Gently lower the basket into place. Be careful not to force the basket free or to disturb other
components inside the unit.
b. Using a Phillips screwdriver, fasten the four screws that attach the drive basket to the
chassis.
Figure 12. Replacing the Mounting Basket
2. To reconnect the SATA data and power cables do the following:
a. Grasp each side of the SATA data connector and carefully and evenly push the connector on
to the drive data connector. Ensure that the plug is pushed all the way on the drive data
connector.
b. Grasp the top and bottom of SATA power connector and carefully and evenly push the
connector on to the drive power connector. Ensure that the connector is pushed all the way on
the power connector.
3. Repeat step 3 for each HDD being installed.
Figure 13. Reconnecting the Data and Power Cables

C2676M (9/07) 15
Reassembling the Unit
1. Replace the chassis cover using the screws you removed from the sides and rear of the unit (refer to
Figure 14).
Figure 14. Replacing the Chassis Cover
2. Attach the silver product label that came with your upgrade kit to the inside of your DVR’s front
door.
a. Remove the paper backing from the product label.
b. Carefully place the label, adhesive-side down, on a free section of the inside of the door.
c. Press down firmly to ensure that the label properly adheres to the inside of the door.
NOTE: In the event that your unit or its components require service, specific labels must be present
and appropriately affixed to the unit’s door. Pelco product support personnel use these labels to
identify the exact components installed in your system. A separate product label is required for each
upgrade component installed on the DX4500/DX4600.
3. Reinstall the unit in a rack enclosure if necessary, and reconnect all of the cables and peripheral
equipment you removed earlier.
4. This completes the reassembly of the DX4500/DX4600.
5. To complete the HDD installation, refer to Formatting on page 16.

16 C2676M (9/07)
Formatting
The DX4500/DX4600 automatically detects when a new drive is installed or when a current drive is
switched to a different SATA connector. After the DX4500/DX4600 starts, the system prompts you to
format the newly installed drive. Drives that have not been switched to a different SATA connector are not
reformatted.
1. On the front panel or remote control, press and hold the Power button until your hear a beep,
and then release the button. After a few seconds, the DX4500/DX4600 startup screen appears.
2. Wait until the DVR displays the “HDD configuration has been changed” dialog box in the application
window.
Figure 15. Application Window and GUI Toolbar
WARNING: Before initiating a format procedure, verify that the drives are reinstalled in the same
position and reconnected to their orginal SATA connectors. For information, refer to Before You
Begin on page 6 and the DX4500/DX4600 server operation/programming manual (C2674M).

C2676M (9/07) 17
3. Do one of the following:
• To format the newly installed HDDs, click OK. The “Hard disk drive recovery in progress”
dialog box appears.
• To cancel the formatting process, click Cancel. The unit exits to the application window.
Figure 16. Hard Disk Drive Recovery in Progress Dialog Box
4. Wait until the “Hard disk drive recovery complete” dialog box appears.
5. Click OK. The application window appears.

18 C2676M (9/07)
.
The materials used in the manufacture of this document and its components are compliant to the
requirements of Directive 2002/95/EC.
This equipment contains electrical or electronic components that must be recycled properly to
comply with Directive 2002/96/EC of the European Union regarding the disposal of waste
electrical and electronic equipment (WEEE). Contact your local dealer for procedures for recycling
this equipment.

PRODUCT WARRANTY AND RETURN INFORMATION
WARRANTY
Pelco will repair or replace, without charge, any merchandise proved defective in material or workmanship for a period of one year after the date of
shipment.
Exceptions to this warranty are as noted below:
• Five years on fiber optic products and TW3000 Series unshielded twisted pair transmission products.
• Three years on Spectra® IV products.
• Three years on Genex® Series products (multiplexers, server, and keyboard).
• Three years on Camclosure® and fixed camera models, except the CC3701H-2, CC3701H-2X, CC3751H-2, CC3651H-2X, MC3651H-2, and
MC3651H-2X camera models, which have a five-year warranty.
• Three years on PMCL200/300/400 Series LCD monitors.
• Two years on standard motorized or fixed focal length lenses.
• Two years on Legacy®, CM6700/CM6800/CM9700 Series matrix, and DF5/DF8 Series fixed dome products.
• Two years on Spectra III™, Esprit®, ExSite®, and PS20 scanners, including when used in continuous motion applications.
• Two years on Esprit and WW5700 Series window wiper (excluding wiper blades).
• Two years (except lamp and color wheel) on Digital Light Processing (DLP®) displays. The lamp and color wheel will be covered for a period of
90 days. The air filter is not covered under warranty.
• Eighteen months on DX Series digital video recorders, NVR300 Series network video recorders, and Endura™ Series distributed network-based video
products.
• One year (except video heads) on video cassette recorders (VCRs). Video heads will be covered for a period of six months.
• Six months on all pan and tilts, scanners or preset lenses used in continuous motion applications (that is, preset scan, tour and auto scan modes).
Pelco will warrant all replacement parts and repairs for 90 days from the date of Pelco shipment. All goods requiring warranty repair shall be sent freight
prepaid to Pelco, Clovis, California. Repairs made necessary by reason of misuse, alteration, normal wear, or accident are not covered under this
warranty.
Pelco assumes no risk and shall be subject to no liability for damages or loss resulting from the specific use or application made of the Products. Pelco’s
liability for any claim, whether based on breach of contract, negligence, infringement of any rights of any party or product liability, relating to the Products
shall not exceed the price paid by the Dealer to Pelco for such Products. In no event will Pelco be liable for any special, incidental or consequential
damages (including loss of use, loss of profit and claims of third parties) however caused, whether by the negligence of Pelco or otherwise.
The above warranty provides the Dealer with specific legal rights. The Dealer may also have additional rights, which are subject to variation from state
to state.
If a warranty repair is required, the Dealer must contact Pelco at (800) 289-9100 or (559) 292-1981 to obtain a Repair Authorization number (RA), and
provide the following information:
1. Model and serial number
2. Date of shipment, P.O. number, Sales Order number, or Pelco invoice number
3. Details of the defect or problem
If there is a dispute regarding the warranty of a product which does not fall under the warranty conditions stated above, please include a written
explanation with the product when returned.
Method of return shipment shall be the same or equal to the method by which the item was received by Pelco.
RETURNS
In order to expedite parts returned to the factory for repair or credit, please call the factory at (800) 289-9100 or (559) 292-1981 to obtain an authorization
number (CA number if returned for credit, and RA number if returned for repair).
All merchandise returned for credit may be subject to a 20% restocking and refurbishing charge.
Goods returned for repair or credit should be clearly identified with the assigned CA or RA number and freight should be prepaid. Ship to the appropriate
address below.
If you are located within the continental U.S., Alaska, Hawaii or Puerto Rico, send goods to:
Service Department
Pelco
3500 Pelco Way
Clovis, CA 93612-5699
If you are located outside the continental U.S., Alaska, Hawaii or Puerto Rico and are instructed to return goods to the USA, you may do one of the
following:
If the goods are to be sent by a COURIER SERVICE, send the goods to:
Pelco
3500 Pelco Way
Clovis, CA 93612-5699 USA
If the goods are to be sent by a FREIGHT FORWARDER, send the goods to:
Pelco c/o Expeditors
473 Eccles Avenue
South San Francisco, CA 94080 USA
Phone: 650-737-1700
Fax: 650-737-0933
REVISION HISTORY
Manual # Date Comments
C2676M 9/07 Original version.
Pelco, the Pelco logo, Camclosure, Esprit, ExSite, Genex, Legacy, and Spectra are registered trademarks of Pelco. ©Copyright 2007, Pelco.
Endura and Spectra III are trademarks of Pelco. All rights reserved.
DLP is a registered trademark of Texas Instruments, Inc.

Worldwide Headquarters
3500 Pelco Way
Clovis, California 93612 USA
USA & Canada
Tel: 800/289-9100
Fax: 800/289-9150
International
Tel: 1-559/292-1981
Fax: 1-559/348-1120
www.pelco.com
ISO9001
Australia
|
Canada
|
Finland
|
France
|
Germany
|
Italy
|
Macau
|
The Netherlands
|
Russia
|
Singapore
South Africa
|
Spain
|
Sweden
|
United Arab Emirates
|
United Kingdom
|
United States