Pelco Home Security System C505M B Users Manual CX9500_CX9504 Receivers Coaxitron System_manual
CX9504 to the manual 55cda615-f443-439f-b1d2-da57fa4bebe7
2015-02-02
: Pelco Pelco-Pelco-Home-Security-System-C505M-B-Users-Manual-440900 pelco-pelco-home-security-system-c505m-b-users-manual-440900 pelco pdf
Open the PDF directly: View PDF
.
Page Count: 20
- Contents
- 1.0 GENERAL
- 1.1 IMPORTANT SAFEGUARDS AND WARNINGS
- 2.0 DESCRIPTION
- 2.1 MODELS
- 3.0 INSTALLATION
- 3.1 SELECTING THE CORRECT RECEIVER FOR
- 3.1.1 The CX9500 Coaxitron VIS Control System
- 3.1.2 The CX9504 4-Wire RS-485 Control System
- 3.2 CONNECTING THE RECEIVER
- 3.2.1 Connector Assembly
- 4.0 OPERATION
- 5.0 CX9500 RECEIVER BOARD DESCRIPTIONS
- 5.1 MOTHER BOARD
- 5.2 OPTION BOARD
- 5.3 UNIVERSAL AC POWER SUPPLY
- 5.3.1 Transformer and Power Supply Circuits
- 5.3.2 Logic and Latch Circuits
- 5.3.3 Pan and Tilt Drive Circuit
- 5.3.4 Lens Power Supply Circuit
- 5.4 Variable Speed Power Supply
- 5.4.1 Power Supply and Camera Transformer Circuit
- 5.4.2 Motor Driver Circuits
- 6.0 FIRMWARE DESCRIPTIONS
- 6.1 Baud Rates
- 6.2 Programmed Aux Functions
- 7.0 SPECIFICATIONS
- 8.0 Warranty and return information
- LIST OF ILLUSTRATIONS

®
Pelco • 3500 Pelco Way • Clovis, CA 93612-5699 • USA • www.pelco.com
(800) 289-9100 or (1-559) 292-1981 • FAX (800) 289-9150 or (1-559) 292-3827
International customers call (1-559) 292-1981 or FAX (1-559) 348-1120
CX9500/CX9504 Receivers
Coaxitron® System
Installation/Operation Manual
C505M-B (4/97)
FUSE
14
59
1510
2216
2823
3329
3734
14
59
1510
2216
2823
3329
3734
MADE IN U.S.A
00015

18 Pelco Manual C505M-B (4/97)
CONTENTS
Section Page
1.0 GENERAL .................................................................................................. 1
1.1 IMPORTANT SAFEGUARDS AND WARNINGS ............................... 1
2.0 DESCRIPTION .......................................................................................... 2
2.1 MODELS ............................................................................................2
3.0 INSTALLATION .......................................................................................... 3
3.1 SELECTING THE CORRECT RECEIVER FOR
YOUR APPLICATION ........................................................................ 3
3.1.1 The CX9500 Coaxitron VIS Control System .......................... 3
3.1.2 The CX9504 4-Wire RS-485 Control System ........................ 4
3.2 CONNECTING THE RECEIVER ....................................................... 5
3.2.1 Connector Assembly ..............................................................6
4.0 OPERATION .............................................................................................. 7
5.0 CX9500 RECEIVER BOARD DESCRIPTIONS ......................................... 8
5.1 MOTHER BOARD ............................................................................. 8
5.2 OPTION BOARD ............................................................................... 9
5.3 UNIVERSAL AC POWER SUPPLY ...................................................9
5.3.1 Transformer and Power Supply Circuits ................................ 9
5.3.2 Logic and Latch Circuits ........................................................ 9
5.3.3 Pan and Tilt Drive Circuit ....................................................... 9
5.3.4 Lens Power Supply Circuit ..................................................... 9
5.4 VARIABLE SPEED POWER SUPPLY ............................................... 9
5.4.1 Power Supply and Camera Transformer Circuit .................... 9
5.4.2 Motor Driver Circuits ............................................................. 10
6.0 FIRMWARE DESCRIPTIONS ................................................................... 13
6.1 BAUD RATES ................................................................................... 13
6.2 PROGRAMMED AUX FUNCTIONS ................................................. 13
7.0 SPECIFICATIONS .................................................................................... 14
8.0 WARRANTY AND RETURN INFORMATION ........................................... 16
ii

Pelco Manual C505M-B (4/97) 19
LIST OF ILLUSTRATIONS
FigurePage
1 Typical Coaxitron Application ............................................................. 3
2 Typical RS-485 Control Applications .................................................. 4
3 Receiver Connector Locations ........................................................... 5
4 Connector Assembly .......................................................................... 6
5 Receiver Board Locations .................................................................. 8
6 Options Board Address Settings ....................................................... 10
7 Universal Power Supply Board ......................................................... 11
8 Variable Speed Power Supply Board ................................................ 11
9 CM9500 Series Receiver/Driver Dimension Drawing ....................... 15
LIST OF TABLES
Table Page
A CPC 37-PIN Connector Pinouts ........................................................ 5
B Strapping Configurations for Universal AC Power Supply ................ 12
C Variable Speed Power Supply and Camera Transformer
Strapping Configurations .................................................................. 12
REVISION HISTORY
Manual # Date Comments
C505M 6/93 Original version
C505M-A 4/95 Updated to latest format and incorporated ECO's 94-507,
95-001 and 95-002.
C505M-B 4/97 Updated to new format. Removed proprietary informa-
tion. Updated connector assembly instructions and
illustrations. Revised Figure 3.
iii

20 Pelco Manual C505M-B (4/97)
(This page intentionally left blank.)
iv

Pelco Manual C505M-B (4/97) 1
Please thoroughly familiarize yourself with the information
in this manual prior to installation and operation.
1.0 GENERAL
1.1 IMPORTANT SAFEGUARDS AND WARNINGS
Prior to installation and use of this product, the following WARNINGS should be
observed.
1. Installation and servicing should only be done by Qualified Service Personnel
and conform to all Local codes.
2. Unless the unit is specifically marked as a NEMA Type 3, 3R, 3S, 4, 4X ,6 or
6P enclosure, it is designed for Indoor use only and it must not be installed
where exposed to rain and moisture.
4. Only use replacement parts recommended by Pelco.
5. After replacement/repair of this unit’s electrical components, conduct a resis-
tance measurement between line and exposed parts to verify the exposed
parts have not been connected to line circuitry.
The product may bear the following marks:
This symbol indicates that dangerous voltage constituting a
risk of electric shock is present within this unit.
This symbol indicates that there are important operating and
maintenance instructions in the literature accompanying this
unit.
CAUTION:
RISK OF
ELECTRIC SHOCK.
DO NOT OPEN.
CAUTION:
TO REDUCE THE RISK OF ELECTRICAL SHOCK,
DO NOT REMOVE COVER. NO USER-
SERVICEABLE PARTS INSIDE. REFER SERVICING
TO QUALIFIED SERVICE PERSONNEL.

2Pelco Manual C505M-B (4/97)
2.0 DESCRIPTION
The Coaxitron® System 9500 receivers are available in two control formats and
work with all Coaxitron controls. The control formats are as follows:
1. CX9500 Coaxitron control
2. CX9504 RS-485 4-wire control
Standard features for all receivers include:
• Full PTZ (Pan/tilt and Zoom) Coaxitron control
• 8 programmable auxiliary functions
• Adjustable lens voltages
• 24 VAC, 120 VAC and 230 VAC camera voltages
• Indoor/outdoor model; integrated mount versions available for Legacy® series
pan/tilts
• 24, 120, 230 VAC input voltages
• Self-test diagnostics built into firmware
• Composite sync generation in the absence of camera video
• Auto/Random scan
These models each support several options such as:
• 32 Presets with no labels
• Universal AC fixed speed power supply
• Variable Speed DC power supply
• Coaxitron or RS-485 control
2.1 MODELS
The last number of the base model number designates the control type: Coaxitron
(CX9500) is the most elementary and the last is the 4-wire RS-485 (CX9504).
The suffix will be RX for indoor/outdoor enclosure.
The remainder of the model number is in the form of extensions that designate any
optional feature. These features are:
• PP 32 presets senses
• VS Variable speed
NOTE:
Any feature and/or option
listed must be supported by the con-
troller being used for the correspond-
ing receiver function or option to
work properly.

Pelco Manual C505M-B (4/97) 3
3.0 INSTALLATION
3.1 SELECTING THE CORRECT RECEIVER FOR YOUR
APPLICATION
Successful installation must include proper application planning. The trade-offs and
application hints that should be considered for each receiver type are discussed in
the following subsections.
3.1.1 The CX9500 Coaxitron VIS Control System
A typical application is given in Figure 1.
Operating distance for the Vertical Interval Signaling (VIS) system is probably the
most crucial installation parameter. For a VIS control system, the maximum loss
allowed across the coax is 6 dB at 1 MHz. The actual distance for a system without
line amplifiers can be calculated by the following formula.
Distance = 6 dB / Loss of the coax cable and any splices.
Where the “Loss of the coax cable” is obtained from the cable manufacturer’s data
sheets. The splice loss can vary, but a good splice can be assumed to add about
0.5 dB loss to the cable.
Terminations for the video must be supplied at the controller end of the coax. The
correct termination is 75 ohms. If multiple components such as a VCR or monitors
are on the coax line, the piece of equipment at the extreme end should supply the
only termination.
Figure 1. Typical Coaxitron Application

4Pelco Manual C505M-B (4/97)
Figure 2. Typical RS-485 Control Applications
3.1.2 The CX9504 4-Wire RS-485 Control System
This system is used in applications where multiple receivers will listen to a single
control channel, but duplex operation is desired. The RS-485 system presents sev-
eral unique installation requirements. These requirements are shown in Figure 2
and are discussed below.
Excessive stub lengths are not acceptable since they produce reflections that cause
message errors. This means that a “star” or “Y” topology is not acceptable.
The extreme ends of the cable must have 120 ohm termination resistors to mini-
mize reflections.

Pelco Manual C505M-B (4/97) 5
3.2 CONNECTING THE RECEIVER
Connecting the receiver involves mating the correct connector assembly to the
appropriate receiver connector (J6 or J7) on the Coaxitron unit. See Figure 3.
Receiver connector locations are listed as follows:
BNC-1** Video input from camera
BNC-2** Video output and Coaxitron input
J6 Standard function P/T cable connection
J7 Optional functions cable connection
F-1 Fuse holder
AC Input power cable
**Used in CX9500 only
The connector assemblies provided to you need to be assembled according to the
instructions in section 3.2.1. When assembling either connector, follow the wiring
call-outs listed in Table A for pin placement for the connector being wired ( J6 or J7).
Table A. CPC 37-PIN Connector Pinouts
PTZ Connector (J6)
Pin# Function Pin# Function Pin# Function Pin# Function
1 Not Used 20 Not Used 1 Pan/ Tilt Motor Common 20 Not Used
2 Not Used 21 Aux 3 TTL Output 2 Auto Iris Supply 21 Not Used
3 Not Used 22 Aux 4 TTL Output 3 Left 22 Not Used
4 Ground 23 Aux 5 TTL Output 4 Video Ground 23 Not Used
5 VAC 24 Aux 6 TTL Output 5 Down 24 Not Used
6 Not Used 25 Aux 7 TTL Output 6 Up 25 Aux 1 TTL Output
7 Gen Lock Core Input 26 Aux 8 TTL Output 7 Right 26 Aux 2 TTL Output
8 Not Used 27 Not Used 8 Chassis Ground 27 Video Core
9 AC Common 28 Not Used 9 Camera Supply High 28 Preset Ref. Ground
10 Reserved 29 Not Used 10 Iris 29 Preset Ref. Supply
11 Reserved 30 Not Used 11 Focus 30 Gen Lock Core Out
12 Reserved 31 Not Used 12 Zoom 31 Not Used
13 Reserved 32 Reserved 13 Lens Common 32 Not Used
14 Not Used 33 Not Used 14 Camera Supply Low 33 Pan B Pot Feedback
15 Reserved 34 TXD+ 15 Enclosure AC High 34 Focus Pot Feedback
16 Reserved 35 RXD+ 16 Enclosure AC Low 35 Zoom Pot Feedback
17 Reserved 36 RXD- 17 Not Used 36 Tilt Pot Feedback
18 Reserved 37 TXD- 18 Not Used 37 Pan A Pot Feedback
19 Not Used 19 Not Used
Figure 3. Receiver Connector Locations
FUSE
MADE IN U.S.A
14
59
15 10
22 16
28 23
33 29
37 34
14
59
15 10
22 16
28 23
33 29
37 34
00013
Option Connector (J7)

6Pelco Manual C505M-B (4/97)
Figure 4. Connector Assembly
3.2.1 Connector Assembly
If you did not order a pre-assembled connector, assemble the connector parts ac-
cording to the instructions below. Detail B, below, reflects the pin arrangement spe-
cific to CX9500/CX9504 Receivers. Refer to Figure 4 during assembly. For best
results use an AMP style crimper when making the wire to pin connection.
The instructions that follow apply to all AMP style connectors regardless of pin size
or pin number.
1. Slide the connector clamp assembly over the conductor cable. If the diameter
of the conductor cable is such that the rubber boot will slide over it easily, then
slide the rubber boot onto the conductor cable at this time. If not, discard the
rubber boot.
2. Prepare the wires from the conductor cable as follows:
a. Strip at least 1" from the cable jacket to expose the wires. You may need
to strip more from the cable jacket if you have more wires.
b. Strip 1/8" from each wire.
c. Using an AMP style crimper, crimp the wires and their insulation to the
connector pins. Refer to Detail A in Figure 4.
3. Slide the connector pins into the appropriate holes in the connector body until
they snap into place. The connector holes are numbered for your convenience.
4. Push the connector clamp assembly (with boot, if used) toward the connector
body. Screw the clamp assembly onto the connector body, being careful not to
disturb the wires.
5. To complete the assembly, attach the appropriate clamp with the screws pro-
vided and tighten.
NOTE:
Contacts cannot be re-
moved from the connector without the
use of the appropriate AMP extrac-
tion tool (ZT305183) which is avail-
able from Pelco.
OR
00009
1" 1/8"
A
B
FRONT VIEW
00001
14
59
15 10
22 16
28 23
33 29
37 34

Pelco Manual C505M-B (4/97) 7
4.0 OPERATION
Upon applying power, the receiver will perform its self-test functions. These diag-
nostics determine the receiver, pan and tilt, lens and camera configuration by exer-
cising each. The results are reported by text superimposed on the video if the text
generator is preset (ZS versions). All versions are designed to allow the simulta-
neous operation of the PTZ commands. This feature is described in detail in the
firmware section (Section 6.0). Other features are automatic composite sync gen-
eration in the event of camera video failure.
CX9500 Receiver
The CX9500 Coaxitron receiver operation is similar to the Coaxitron System 2000.
Vertical Interval Signaling (VIS) is used to talk to and from the receiver. The actual
signal is a Pulse Width Modulated (PWM) 15 or 32 pulse train of 0.5 to 1.5 volts
amplitude, where a 2 µs pulse is considered a Coaxitron one (1), and a 1 µs pulse
is considered a Coaxitron zero (0). Line 10 is reserved for alarm reporting and
acknowledgment from the receiver by an 8-bit Coaxitron signal. Line 18 is reserved
for Coaxitron commands to the receiver in the form of 16-bit Coaxitron signals. Line
19 is reserved for Coaxitron data to the receiver in the form of 16-bit Coaxitron
commands. Compatibility with the older System 2000 controllers is maintained by
allowing a 15-bit Coaxitron signal in lines 15 through 19. Once a valid signal is
received, it is processed by the receiver as described in the firmware section (Sec-
tion 6.0) of this manual.
CX9504 Receiver
Four-wire RS-485 operation allows for applications that require the receiver to be
interfaced to single control and response channels in a daisy-chained fashion. The
protocol is given in the firmware section (Section 6.0) of this manual. The drivers
follow the RS-485 specification and are tri-stated to “high Z” when not transmitting.
This allows several receivers to be wired together in a daisy-chained fashion on a
single control channel. There is no channel contention avoidance built into the re-
ceiver. When it hears a valid command for its address, it immediately responds.
Contention avoidance must be accounted for at the controller.
“PP” Option
This option allows 32 complete preset senses to be programmed and recalled as
described in the firmware section. It should be noted that the protocol for this op-
eration is not compatible with the older (Coaxitron Matrix) 7500 style preset proto-
col.
“VS” Option
This option provides the control for 12 VDC brushed motors to be driven in a vari-
able speed fashion.

8Pelco Manual C505M-B (4/97)
5.0 CX9500 RECEIVER BOARD DESCRIPTIONS
The CX9500 Receiver contains three boards: the Mother Board, the Option Board,
and the Power Supply Board. Gaining access to the board slot locations can be
seen in Figure 5. As part of any operational set-up, the Option and Power Supply
Boards must be pulled and configured. This will be discussed shortly; first, a brief
description of the function of each of the boards is given on the following pages.
5.1 MOTHER BOARD
The motherboard is the heart of the system. It contains the Microprocessor Cir-
cuits, Video Amplifier Circuits, Sync Generation and Sync Separation circuits and
the Coaxitron Transceiver Circuits.
The Microprocessor Circuit handles all system functions via software interrupts
and communicates with the rest of the circuitry (externally and on the Motherboard
itself) via three functional buss groupings. The first group, the Address/Data buss,
facilitates processor access of external program memory and external data memory.
The second group, the Serial Data buss, among other functions, provides the path
by which the non-volatile EPROMs which contain preset information are accessed
on the Options Board. All data latches and Coaxitron transceiver communications
occur through the third grouping, the External B and C-Data Busses, respectively.
The Video Amplifier and processing circuits add VIS and text bit patterns onto the
camera video or, alternately, removes video from the incoming VIS.
The Sync Generation Circuit, in the presence of a good video signal, separates and
locks the generated sync to the camera. In the absence of a good video signal, the
free running sync from the generator is inserted in place of that from the camera.
The Sync Separation circuit separates the incoming sync from the video informa-
tion and provides the system signal that interrupts the processor every vertical
interval.
The Coaxitron Transceiver Circuits facilitate the storage, error checking and timing
needed to transfer data . The transmitter can send the data to either the coax or the
camera, depending on application. The receiver obtains its input from the last stage
of the video section The receiver amplifies, counts and then gates these data pulses
into temporary Dual Port Ram (DPRAM) storage locations.
CABLE END
CX9500/9504
TO GAIN ACCESS TO
THE BOARDS WITHIN
THE UNIT, LOOSEN THE
END CAP HARDWARE (NUTS)
AND REMOVE THE END CAP
AS DIRECTED
REMOVABLE
END CAP
POWER SUPPLY BOARD
OPTIONS BOARD
MOTHERBOARD
Figure 5. Receiver Board Locations

Pelco Manual C505M-B (4/97) 9
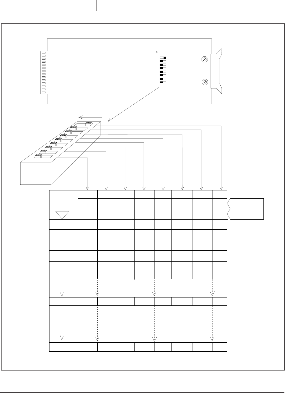
5.2 OPTION BOARD
This board contains all the circuitry required for all options. The components will be
loaded or not loaded according to the model being built. Preset circuits are loaded
for preset (PP). Receiver Address circuits are loaded for the 9504 versions of the
receiver. The RS-485 drivers are only loaded for the 9504 version. The address
switch sets the receiver address on power-up, and any change of address requires
a hard reset. Switch settings are binary encoded. Figure 6 shows how these ad-
dress settings are derived. If you are running simple coaxitron, you only have one
address to worry about; if you're running RS485 multiple control applications, then
each Receiver Option Board must be set for a different address. Implement Re-
ceiver addressing, using Figure 6 as a guide.
5.3 UNIVERSAL AC POWER SUPPLY
This board was designed to power all of Pelco’s fixed speed pan and tilts that use
synchronous AC motors. This board supplies the power for all the other boards. It
listens to the processor and drives the PTZ accordingly. Each section is described
in the following subsections.
5.3.1 Transformer and Power Supply Circuits
The transformer and power supply circuit supply the different voltages required by
the remainder of the circuitry. The transformer is capable of stepping down the
input voltage to required levels to supply the P/T, camera, and an accessory output.
The total power drawn from the transformer from these windings must not exceed
50 watts. Step-up operation in which the supply voltage is less than the PT or
camera voltage is not recommended. Table B lists the strapping configurations and
fuse values needed for the recommended input/output voltages.
5.3.2 Logic and Latch Circuits
The logic and latch circuits listen to the mother board and control driver outputs for
the PTZ.
5.3.3 Pan and Tilt Drive Circuit
The pan/tilt drive circuit for this version is simply four (4) solid-state relays which
are energized by the latch circuit. The pan relays are monitored for the presence of
current. This is used to detect limit stops when auto/random scan is used.
5.3.4 Lens Power Supply Circuit
The lens power supply circuit consists of dual power op amp circuits that provide up
to +12 VDC for the lens outputs when engaged.
5.4 VARIABLE SPEED POWER SUPPLY
This board was designed to power all of Pelco’s 12 VDC variable speed pan and
tilts. This board also supplies the power for all the other boards. It also listens to the
processor circuit and drives the PTZ accordingly. The descriptions for the lens power
supply circuit and the logic and latch circuits is the same as that previously de-
scribed in the AC power supply section. The remaining sections are described be-
low.
5.4.1 Power Supply and Camera Transformer Circuit
Power supply and camera transformer circuit provide the operating voltages for the
remainder of the receiver. The power supply is a switch mode power supply . It is
supplied with 120 to 230 VAC and provides +12, -12, and +5 VDC. The switch
mode power supply is capable of 40 watts continuous and 45 watts surge power.
The camera transformer is capable of either 120 or 230 VAC input and 24 VAC
output. Table C lists the strapping configurations needed for the recommended
input/output voltages.
NOTE:
Prior to operation, both the
fuse and strapping configurations
must be installed. Use Figure 8 and
Table II to configure.
NOTE:
Prior to operation, both the
fuse and strapping configurations
must be installed. Use Figure 9 and
Table III to configure.

10 Pelco Manual C505M-B (4/97)
Figure 6. Options Board Address Settings
2222 2222
76 54 32 10
SW1 SW2 SW3 SW4 SW5 SW6 SW7 SW8
ON
RECEIVER
ADDRESS Binary Weight
Position Specific
Decimal Equivalent
128 64 32 16 8 4 2 1
1
2
3
4
5
6
15
255
000000 01
000000 10
000000 11
000001 00
000001 01
000001 10
000011 11
1 1111111
8
7
6
5
4
3
2
1
SW1
ON
SW1 shown with receiver
address of "1".
"1"= OFF
"0"= ON
OPTIONS BOARD
NOTE:
In practice, receiver address "0" & "255" are not used.
5.4.2 Motor Driver Circuits
The Motor Driver circuits listen to the latch circuitry and provide a pulse width modu-
lated +12 volt output to the P/T motors.

Pelco Manual C505M-B (4/97) 11
Figure 8. Variable Speed Power Supply Board
Figure 7. Universal Power Supply Board
JP2
JP4
JP6
JP8
JP10
JP12
JP14
JP16
JP18
JP1
JP3
JP5
JP7
JP9
JP11
JP13
JP15
JP17
Typical Jumper Wire
supplied in plastic
bag along with fuses
Universal AC Power Suppy Board
JP2
JP8
JP7
JP9
JP4
JP6
JP10
JP14
JP16
JP18
JP15
JP17
JP12
JP1
JP3
JP5
JP11
JP13
Typical Jumper Wire
supplied in plastic
bag along with fuses
Variable Speed Power Suppy Board
The "variable speed
power supply board"
option is fused at the
at the factory with a
2A VAC fuse. This fuse
is shipped installed
and is not part of the
voltage input fuses
supplied in the
plastic bag
containing
jumper
wires.

12 Pelco Manual C505M-B (4/97)
WARNING:
The AC line voltage
used to power the receiver/driver is
the same voltage that is fed through
the pan/tilt into the enclosure as “en-
closure power”, which also supplies
the heaters and blower where appli-
cable. This voltage is not selectable.
INPUT VOLTAGE
24 VAC 120 VAC 230 VAC
Fuse 2 AMP 1 AMP 1/2 AMP
Transformer JP2-JP15 JP2-JP1 JP2-JP1
Primary JP6-JP11 JP4-JP3 JP3-JP5
JP6-JP5 JP8-JP7
JP8-JP7
Pan/Tilt
24 VAC JP13-JP16 JP15-JP16 JP15-JP16
JP9-JP12 JP11-JP12 JP11-JP12
120 VAC * JP17-JP16 JP17-JP16
JP11-JP12 JP11-JP12
230 VAC * * JP4-JP16
JP6-JP12
Camera Voltage
24 VAC JP4-JP14 JP13-JP14 JP13-JP14
JP8-JP10 JP9-JP10 JP9-JP10
120 VAC * JP18-JP14 JP18-JP14
JP9-JP10 JP9-JP10
230 VAC * * JP4-JP14
JP6-JP10
Table B. Strapping Configurations for Universal AC Power Supply
INPUT VOLTAGE
120 VAC 230 VAC
Fuse 1AMP 1/2AMP
Transformer JP2 - JP7 JP2 - JP7
Primary JP9 – JP15 JP8 – JP15
JP10 – JP8 JP17 – JP16
JP17 - JP16
Camera Voltage
24 VAC JP3 – JP4 JP3 – JP4
JP12 – JP13 JP12 – JP13
120 VAC JP1 - JP4 *
JP11 - JP13
230 VAC * JP1 - JP4
JP11 - JP13
* Not a recommended
configuration.
* Not a recommended
configuration.
Table C. Variable Speed Power Supply and Camera Transformer
Strapping Configurations

Pelco Manual C505M-B (4/97) 13
6.0 FIRMWARE DESCRIPTIONS
6.1 BAUD RATES
The hardware architecture between the controller and receiver is an RS-485 circuit
designated the “control channel”. The baud rate is currently set to 2400 baud. The
information is processed by the receiver every 16 ms. Higher baud rates are pos-
sible by increasing the ring buffer size, but the information processing rate is set at
60 Hz.
6.2 PROGRAMMED AUX FUNCTIONS
Eight auxiliary outputs, depending on receiver optioning, are available to allow con-
trol of other peripheral devices. The operation of these functions are controlled by
the receivers associated controller. The auxiliary functions may be programmed for
latching or momentary operation. In latching mode, the output goes into an active
mode after receiving a set command from the controller and is deactivated after
reception of a clear command. In the momentary mode, the set command activates
the output for a fixed duration of time (16ms) and the clear command is not used.

14 Pelco Manual C505M-B (4/97)
7.0 SPECIFICATIONS
ELECTRICAL
Input Voltage (50/60 Hz):
Standard
Version 24, 120, 230 VAC
VS Version 120, 230 VAC
Power Consumption (excluding PTZ):
Standard
Version 6 watts
VS version 6 watts
P/T Output Voltages:
Standard
Version 24, 120, 230 VAC
VS Version 12 VDC PWM at 15 KHz
P/T Output Currents:
Standard
Version 1.5 amps per motor
VS version 3 amps per motor
P/T Output Power:
Standard
Version 50 watts
VS version 35 watts
Camera Output Voltages:
All Versions 24, 120, 230 VAC
Lens Output Voltages:
All Versions 0 to 12 VDC
Control Method:
CX9500 Coaxitron VIS
CX9504 4-wire RS-485
Standard Baud Rates:
CX9500 1 MHz
CX9504 2400 baud
Command Error Rates:
Duplex 0%
Simplex 0.02%
Input Video Level:
All versions 0.5 to 1.5 V p-p
Input Video Format:
Standard NTSC, RS-170
Optional PAL
Video Bandwidth:
All versions 10 MHz
Operating Distances:
Coaxitron
Version 2,000 ft (610 m) on RG-11
RS-485 Version 4,000 ft (1,219 m) on 24 Awg-TP
NOTE:
All standard baud rates from
600 to 19.2K are available on an op-
tional basis. Please consult the fac-
tory.
NOTE:
Operating distances given
here are calculated, and based on
typical performance. The actual cal-
culations are explained in the Instal-
lation section of this manual, and
should be done for each application
prior to installation.

Pelco Manual C505M-B (4/97) 15
MECHANICAL
Connectors:
P/T 37-pin CPC
Options 37-pin CPC
Video 2 BNCs
Power 3-wire #18 Awg
Fuse 2 AG, 1/2 amp
GENERAL
Ambient Operating
Temperature: -4° to 140° F (-20° to 60° C)
Dimensions: See Figure 9.
Figure 9. CM9500 Series Receiver/Driver Dimension Drawing
9.14
(23.22)
8.36
(21.23)
7.16
(18.18)
5.88
(14.94)
12.75
(32.39)
Ø .33 (.84) THRU
4X
5.10
(12.95)
FUSE
MADE IN U.S.A
14
59
15 10
22 16
28 23
33 29
37 34
14
59
15 10
22 16
28 23
33 29
37 34
NOTE: VALUES SHOWN IN PARENTHESES ARE CENTIMETERS;
ALL OTHERS ARE INCHES

16 Pelco Manual C505M-B (4/97)
8.0 WARRANTY AND RETURN INFORMATION
Pelco, the Pelco logo, Camclosure, Esprit,
Genex, Legacy, and Spectra are registered
trademarks of Pelco.
Endura and ExSite are trademarks of Pelco.
© Copyright 1997, Pelco. All rights reserved.
WARRANTY
Pelco will repair or replace, without charge, any merchandise proved defective in material or
workmanship for a period of one year after the date of shipment.
Exceptions to this warranty are as noted below:
• Five years on FT/FR8000 Series fiber optic products.
• Three years on Genex
®
Series products (multiplexers, server, and keyboard).
• Three years on Camclosure
®
and fixed camera models, except the CC3701H-2, CC3701H-2X,
CC3751H-2, CC3651H-2X, MC3651H-2, and MC3651H-2X camera models, which have a five-
year warranty.
• Two years on standard motorized or fixed focal length lenses.
• Two years on Legacy
®
, CM6700/CM6800/CM9700 Series matrix, and DF5/DF8 Series fixed
dome products.
• Two years on Spectra
®
, Esprit
®
, ExSite
™
, and PS20 scanners, including when used in
continuous motion applications.
• Two years on Esprit
®
and WW5700 Series window wiper (excluding wiper blades).
• Eighteen months on DX Series digital video recorders, NVR300 Series network video
recorders, and Endura
™
Series distributed network-based video products.
• One year (except video heads) on video cassette recorders (VCRs). Video heads will be
covered for a period of six months.
• Six months on all pan and tilts, scanners or preset lenses used in continuous motion applications
(that is, preset scan, tour and auto scan modes).
Pelco will warrant all replacement parts and repairs for 90 days from the date of Pelco shipment.
All goods requiring warranty repair shall be sent freight prepaid to Pelco, Clovis, California. Repairs
made necessary by reason of misuse, alteration, normal wear, or accident are not covered under
this warranty.
Pelco assumes no risk and shall be subject to no liability for damages or loss resulting from the
specific use or application made of the Products. Pelco’s liability for any claim, whether based on
breach of contract, negligence, infringement of any rights of any party or product liability, relating
to the Products shall not exceed the price paid by the Dealer to Pelco for such Products. In no event
will Pelco be liable for any special, incidental or consequential damages (including loss of use, loss
of profit and claims of third parties) however caused, whether by the negligence of Pelco or
otherwise.
The above warranty provides the Dealer with specific legal rights. The Dealer may also have
additional rights, which are subject to variation from state to state.
If a warranty repair is required, the Dealer must contact Pelco at (800) 289-9100 or (559) 292-1981
to obtain a Repair Authorization number (RA), and provide the following information:
1. Model and serial number
2. Date of shipment, P.O. number, Sales Order number, or Pelco invoice number
3. Details of the defect or problem
If there is a dispute regarding the warranty of a product which does not fall under the warranty
conditions stated above, please include a written explanation with the product when returned.
Method of return shipment shall be the same or equal to the method by which the item was received
by Pelco.
RETURNS
In order to expedite parts returned to the factory for repair or credit, please call the factory at (800)
289-9100 or (559) 292-1981 to obtain an authorization number (CA number if returned for credit,
and RA number if returned for repair).
All merchandise returned for credit may be subject to a 20% restocking and refurbishing charge.
Goods returned for repair or credit should be clearly identified with the assigned CA or RA number
and freight should be prepaid. Ship to the appropriate address below.
If you are located within the continental U.S., Alaska, Hawaii or Puerto Rico, send goods to:
Service Department
Pelco
3500 Pelco Way
Clovis, CA 93612-5699
If you are located outside the continental U.S., Alaska, Hawaii or Puerto Rico and are instructed
to return goods to the USA, you may do one of the following:
If the goods are to be sent by a COURIER SERVICE, send the goods to:
Pelco
3500 Pelco Way
Clovis, CA 93612-5699 USA
If the goods are to be sent by a FREIGHT FORWARDER, send the goods to:
Pelco c/o Expeditors
473 Eccles Avenue
South San Francisco, CA 94080 USA
Phone: 650-737-1700
Fax: 650-737-0933