Pentair Minimax Nt Standard Series Users Manual 472032_revA.p65
NT Standard Series to the manual 7f5f9daa-fc69-3874-d9c3-4aa5e69a5a4e
2015-02-06
: Pentair Pentair-Minimax-Nt-Standard-Series-Users-Manual-517979 pentair-minimax-nt-standard-series-users-manual-517979 pentair pdf
Open the PDF directly: View PDF
.
Page Count: 32

Rev. A 1-2-02 P/N 472032
1
1
FOR YOUR SAFETY - READ BEFORE OPERATING
Warning: If you do not follow these instructions exactly, a fire or explosion may
result, causing property damage, personal injury or loss of life.
For additional free copies of this manual; call (800) 831-7133.
Do not store or use gasoline or other flammable vapors and
liquids in the vicinity of this or other appliances.
For Your
Safety
Warning: Improper installation, adjustment, alteration, service or maintenance can
cause property damage, personal injury or death. Installation and service must be
performed by a qualified installer, service agency or the gas supplier.
MiniMax NT Standard Series
POOL & SPA HEATERS
OPERATION & INSTALLATION MANUAL
WARNING
WHAT TO DO IF YOU SMELL GAS
•Do not try to light any appliance.
• Do not touch any electrical switch; do not use any phone in your building.
• Immediately call your gas supplier from a neighbor's phone.
Follow the gas supplier's instructions.
• If you cannot reach your gas supplier, call the fire department.
WARNING
U.S. Patent Numbers
6,295,980
5,318,007 - 5,228,618
5,201,307 - 4,595,825
Pentair Pool Products, Inc.
1620 Hawkins Ave., Sanford, NC 27330 • (919) 774-4151
10951 W. Los Angeles Ave., Moorpark, CA 93021 • (805) 523-2400
1
To
Consumer
Retain For
Future
Reference

P/N 472032 Rev. A 1-2-02
2
Table of Contents
Introduction ............................................................................................................... 3
Important Notices ...................................................................................................................................................................... 3
Code Requirements ................................................................................................................................................................... 3
Warranty Information ................................................................................................................................................................. 4
Operation .................................................................................................................... 4
Safety Rules .............................................................................................................................................................................. 4
HSI (Hot-Surface Ignition) Lighting/Operation ........................................................................................................................... 5
Installation Instructions ............................................................................................ 6
Specifications ............................................................................................................................................................................ 6
Installation — Electrical ............................................................................................................................................................. 7
Installation — Remotes (2 and 3 Wire) ...................................................................................................................................... 8 - 9
Installation — Wiring Diagram ................................................................................................................................................... 10
Installation — Water Connections.............................................................................................................................................. 11
Installation — Plumbing ............................................................................................................................................................. 11
Installation — Gas Line ............................................................................................................................................................. 12
Pipe Sizing Chart/Gas Pressure Requirements ......................................................................................................................... 12
Regulated Manifold Pressure Test ............................................................................................................................................. 12
Venting — Indoor Installations ................................................................................................................................................... 13 - 16
Venting — Outdoor Installations ................................................................................................................................................ 17
Basic Operation — General Description .................................................................................................................................... 18
Basic Operation — Safety Controls ...........................................................................................................................................19 - 20
Basic Operation — HSI Ignition Module .................................................................................................................................... 20
Thermostat (Programming & Layout) ........................................................................................................................................ 21
Temperature & Time Setting (Programming) .............................................................................................................................22 - 23
Maintenance ............................................................................................................................ 24
Maintenance Instructions ........................................................................................................................................................... 24
Pressure Relief Valve ................................................................................................................................................................ 24
Maintenance (Water Treatment) ................................................................................................................................................ 25
Trouble Shooting ....................................................................................................... 26
Normal Operation Sequence ..................................................................................................................................................... 26 - 27
Troubleshooting & Service ......................................................................................................................................................... 27 - 28
Troubleshooting (General) ......................................................................................................................................................... 29
MiniMax NT Standard Parts List & Exploded View (Dual Voltage) ............................................ 30-31
Warranty Information ................................................................................................. Back Cover

Rev. A 1-2-02 P/N 472032
3
MiniMax NT Standard
Pool and Spa Heaters
Congratulations on your purchase of a MiniMax NT Standard high performance heating system. Proper
installation and service of your new heating system and correct chemical maintenance of the water will
ensure years of enjoyment. The MiniMax NT Standard is a compact, lightweight, efficient, induced-draft,
gas fired high performance pool and spa heater that can be directly connected to schedule 40 PVC pipe. The
MiniMax NT Standard also comes equipped with the Pentair multifunction 7800 temperature controller
which shows, at a glance, the proper functioning of the heater. All HSI (hot-surface ignition) MiniMax NT
Standard heaters are designed with a direct ignition device (HSI) which eliminates the need for a standing
pilot. The MiniMax NT Standard requires an external power source (120/240 VAC 50/60 Hz) to operate.
IMPORTANT NOTICES
...For the installer and operator of the MiniMax NT Standard pool and spa heater. The manufacturer’s
warranty may be void if, for any reason, the heater is improperly installed and/or operated. Be sure to follow
the instructions set forth in this manual. If you need any more information, or if you have any questions
regarding to this pool heater, please contact Pentair Pool Products, Inc. at (800) 831-7133.
These heaters are designed for the heating of swimming pools and spas, and should never be employed for
use as space heating boilers, general purpose water heaters, in non-stationary installations, or for the heating
of salt water.
Do not use the heater to protect pools or spas from freezing if the final maintenance temperature desired is
below 60° F. as this will cause condensation related problems.
CODE REQUIREMENTS
The installation must conform with local codes or in the absence of local codes with the latest National Fuel
Gas Code, ANSI Z223.1, and the latest edition of the National Electrical Code, NFPA 70.
Installation in Canada to be made in accordance with the latest CAN/CGA-B149.1 or .2 and CSA C22.1
Canadian Electric Code, part 1.
Introduction

P/N 472032 Rev. A 1-2-02
4
Operation
This instruction manual provides operating
instructions, installation and service information
for the MiniMax NT Standard high performance
heater. The information in this manual applies to
the MiniMax NT Standard 200, 250, 300, and
400 models.
It is very important that the owner/installer read
and understand the section covering installation
instructions, and recognize the local and state codes
before installing the MiniMax NT Standard. History
and experience has shown that most heater damage
is caused by improper installation practices.
SAFETY RULES
1. Spa or hot tub water temperatures should never
exceed 104° F. A temperature of 100° F. is
considered safe for a healthy adult. Special
caution is suggested for young children.
2. Drinking of alcoholic beverages before or during
spa or hot tub use can cause drowsiness which
could lead to unconsciousness and subsequently
result in drowning.
3. Pregnant women beware! Soaking in water
above 100° F. can cause fetal damage during the
first three months of pregnancy (resulting in the
birth of a brain-damaged or deformed child).
Pregnant women should stick to the 100° F.
maximum rule.
4. Before entering the spa or hot tub, the user
should check the water temperature with an
accurate thermometer. Spa or hot tub
thermostats may err in regulating water
temperatures by as much as 4° F.
5. Persons with a medical history of heart disease,
circulatory problems, diabetes or blood pressure
problems should obtain their physician's advice
before using spas or hot tubs.
6. Persons taking medication which induce
drowsiness, such as tranquilizers, antihistamines
or anticoagulants should not use spas or hot
tubs.
Should overheating occur or the gas supply fail to shut off, turn off the manual gas control valve to the
appliance. Do not use this heater if any part has been under water. Immediately call a qualified service
technician to inspect the heater and to replace any part of control system and gas control which has been
under water.
WARNING
WARRANTY INFORMATION
The MiniMax NT Standard pool heater is sold with
a limited factory warranty. Specific details are
described on the back cover of this manual and a
copy of the warranty and warranty registration
card are included with the product. Return the
warranty registration card after filling in the serial
number from the rating plate inside the heater.
Pentair Pool Products’ high standards of excellence
include a policy of continuous product improvement
resulting in your state-of-the-art heater. We reserve
the right to make improvements which change the
specifications of the heater without incurring an
obligation to update the current heater equipment.
Operation

Rev. A 1-2-02 P/N 472032
5
Operation (Lighting)
FOR YOUR SAFETY: READ BEFORE LIGHTING
A. This heater is equipped with an ignition device
which automatically lights the main burners.
Do not try to light the burners by hand.
B. BEFORE OPERATING, smell all around
the heater area for gas. Be sure to smell next
to the floor because some gas is heavier than
air and will settle on the floor.
WHAT TO DO IF YOU SMELL GAS
- Do not try to light any heater.
- Do not touch any electrical switch; do not use
any phone in your building.
- Immediately call your gas supplier from a
neighbor's phone. Follow the gas supplier's
instructions.
- If you cannot reach your gas supplier, call the
Fire Department.
C. Use only your hand to push in or turn the gas
control knob. Never use tools. If the knob will
not push in or turn by hand, don't try to repair it.
Call a qualified service technician. Forced or
attempted repair may result in a fire or explosion.
D. Do not use this heater if any part has been under
water. Immediately call a qualified service
technician to inspect the heater and to replace
any part of the control system and any gas
control which has been under water.
E. The MiniMax NT Standard incorporates the
Pentair 7800 temperature controller to aid you
in the operation of the heater, and to assist in
diagnosing a failure in the heater’s function.
MINIMAX NT STANDARD HSI ELECTRONIC IGNITION LIGHTING/OPERATION
1.STOP! Read the safety information above.
2. Set the thermostat to the lowest setting.
3. Turn off electric power to the heater.
4. This heater is equipped with an ignition device
which automatically lights main burners. Do
not try to light the burners by hand.
5. Remove the control access door.
6. Push in gas control knob slightly and turn clock-
wise to “OFF”. (If not on “OFF” position.)
7. Wait five (5) minutes to clear out any gas. If you
then smell gas, STOP! Follow "B" in the safety
information above. If you don't smell gas, go to the
next step.
8. Turn knob on gas control counterclockwise
to “ON”; see Figure 1.
If you do not follow these instructions exactly, a fire or explosion may result causing personal injury, loss of life
and property damage.
Do not attempt to light the heater if you suspect a natural gas leak. Lighting the heater can result in a fire or
explosion which can cause personal injury, death, and property damage.
WARNING
9. Replace the control access door.
10. Turn on the electrical power to the heater.
11. Set the thermostat to the desired setting.
12. If the heater will not operate, follow the instruc-
tions "To Turn Off Gas To Heater" and call your
service technician or gas supplier.
OPERATING INSTRUCTIONS
TO TURN OFF GAS TO APPLIANCE
1. Set the thermostat to lowest setting.
2. Turn off all electric power to the heater if
service is to be performed.
3. Remove control access door.
4. Push in gas control knob slightly and turn
clockwise to "OFF". Do not force.
5. Replace control access door.
Gas control knob shown in “ON” position.
Figure 1.
OFF
ON
Gas
Inlet

P/N 472032 Rev. A 1-2-02
6
Installation Instructions
IMPORTANT NOTICE: These installation instructions are designed for use by qualified personnel
only, trained especially for installation of this type of heating equipment and related components. Some
states require installation and repair by licensed personnel. If this applies in your state, be sure your
contractor bears the appropriate license.
SPECIFICATIONS
24.05
2 in. SOCKET
"A" DIM.
8.84
6.64
30.63
LEG
LEG
14.50
3.50
4.875
MODEL
200
250 24.63
21.63
"A" DIM.
15.50
300
400 34.13
27.63
7.35
24.05
"A" DIM.
8.84
6.64
30.63
LEG
LEG
14.50
3.50
4.875
INDOOR VENT ADAPTOR
4 in. Kit
P/N 460506
5 in. Kit
P/N 460507
15.50
7.35
Ø4.88
Ø5.88
4 in. Kit
P/N 460506
2.00
5 in. Kit
P/N 460507
MODEL
200
250 24.63
21.63
"A" DIM.
300
400 34.13
27.63
OUTDOOR VENTILATION
INDOOR VENTILATION
Figure 2.
Figure 3.
DIMENSIONS IN INCHES
DIMENSIONS IN INCHES

Rev. A 1-2-02 P/N 472032
7
Installation (Electrical)
ELECTRICAL, for MiniMax NT Standard Heaters
Electrical Rating 50/60 Hz 120 / 240 Volts AC, single phase
NOTE
The MiniMax NT Standard heater is prewired for 240 volt AC connection using the “BROWN” female connector and the
“WHITE” common male connector; see below, Figure 4. If you require the heater to be connected to 120 volts AC, remove
the “BROWN” female connector from the “WHITE” common connector; now locate the “BLUE” female connector and plug it
into the “WHITE” common connector.
When connecting the home wiring to the “Line Terminal Block” inside the junction box, follow the polarity as shown below.
Connecting to 120 VAC, make sure that you connect the positive wire to the positive terminal (L), the neutral wire is
connected to the neutral terminal (N) and the ground is connected to the ground terminal (GND); see below, Figure 5.
NOTE
If any of the original wiring supplied with this heater must be replaced, installer must supply
(No. 18 AWG 105° C. U.L. approved AWM low energy stranded) copper wire or it’s equivalent.
In Canada: wires must be CSA approved.
WARNING
The heater must be electrically grounded and bonded in accordance with local codes or in the absence
of local codes, with the latest national electrical codes ANSI/NFPA No. 70.
In Canada: CSA standard C22.1 Canada Electrical Code Part 1 and/or local codes.
Always use crimp type connectors when connecting two wires.
L
N
GREEN WIRE
WHITE WIRE
BLACK WIRE
GROUND
CONNECTION
NEUTRAL / WHITE 120 VAC
LINE #1 FOR 240 VOLT AC
POSITIVE LINE FOR 120 VOLTS AC
LINE #2 FOR 240 VOLT AC
INTERNAL
FACTORY WIRES
LINE TERMINAL BLOCK
BROWN
FM CONNECTOR
FOR USE WITH
240 VOLT AC
BLUE
FM CONNECTOR
FOR USE WITH
120 VOLT AC
WHITE
COMMON MALE
CONNECTOR
TERMINAL BLOCK
FOR AC INPUT
120 / 240 VOLT SINGLE
PHASE "See Below"
Figure 4.
Figure 5.

P/N 472032 Rev. A 1-2-02
8
TWO-WIRE OR THREE-WIRE REMOTE HOOK-UP
Installation (Remotes)
Before connecting the remote control system please read the following:
1. First turn the gas valve to the "OFF" position and power up the
heater, now using the front buttons on the temperature controller,
set the "SPA" and "POOL" temperature to the maximum setting,
see Page 22.
2. Now turn the heater to the "OFF" mode by using the "OFF" button
on the temperature controller, see Page 22 or by using the main
power switch located on the bottom of the junction box.
3. With the heater in the "OFF" mode, locate the three tabs on the back
of the temperature controller as viewed from the backside,
see Figure 6.
4. • Two-wire remote with temperature control:
a) Using 3/16" female quick disconnect connectors, connect one
wire to the "GND" tab of the temperature controller, then the
second wire to either the "SPA" or "POOL" tab.
b) Now return power to the heater but leaving the temperature controller in the "OFF" position,
see Page 22. (Note: If you used the main power switch to turn off the heater, now turn the main power
switch on.) At this time the remote system has control over the heater, and will turn it on and off when
called for by the remote system thermostat thus keep the pool and spa at the desired temperature.
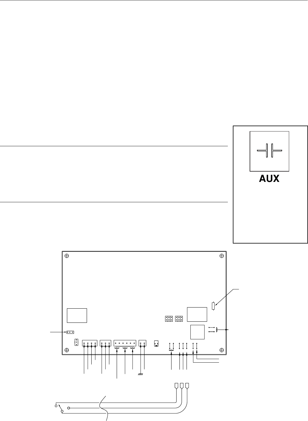
123
POOL SPA GND
Figure 6.
10 A
25O V
RELAY
5 A
25O V
RELAY
10 A
25O V
RELAY
TPROBE
AUX2
POWERLIMITSG VALVEIGN MODULE
24 VAC
PV
PV/MV
MV
PV/MV
PV
MV
24 VAC
H LIMIT
T FUSE
PRESS
BLOWER
A.C LOAD (PUMP/AUX2)
(PILOT DUTY ONLY)
3
4
1234 123 123456 12 12
1
2
3
1
F
2
TEMPERATURE
DISPLAY MODE
3
C
5 A FUSE
FOR AUX2 (PILOT DUTY ONLY)
2
13
(AUX1)
REMOTE
AIR PRESS
POOL
SPA
GND
BLOWER (POWER) LINE
BLOWER (POWER) LINE
PUMP/AUX2
PURGE PUMP
MODE
135
642
531
246
J1 J2
}
NOT USED
SPA
GND
REMOTE SWITCH CONTROLLER
2 WIRE REMOTE
Figure 7.
Three-Wire continued on next page.

Rev. A 1-2-02 P/N 472032
9
• Three-wire remote:
a) Using 3/16" female quick disconnect connectors, connect the common wire to the "GND" tab of the
temperature controller, then connect the two remaining wires to the temperature controller
corresponding to the remote control device, pool wire to "POOL" tab, spa wire to "SPA" tab.
b) Now return power to the heater. (Note: If you used the main power switch to turn off the heater, now
turn the main power switch on.) At this time, the remote system has control over the heater and if pool
or spa temperature is below the temperature controller setting, then the heater will try to come on.
c) If you desire to reset the temperature settings of the temperature controller, the remote has to be in the
desired mode for you to change the particular setting. Example: You wish to raise or lower the pool
temperature from the factory setting, you must have the remote system in the pool mode, if you wish to
change the spa temperature, you must have the remote system in the spa mode.
5. Now turn on the gas valve to "OPEN" position, the heater is now ready to
operate.
NOTE
The heater factory settings are 78° F. for the pool and 104° F. for the spa.
When connecting a remote control to the MiniMax, you must install the low
voltage thermostat wires in separate conduit from ANY line voltage wires.
Failure to follow these instructions will cause the thermostat relay to react
erratically. A Remote hook-up deactivates the selector keys on the front
thermostat display panel and gives selection control to the remote.
TWO-WIRE OR THREE-WIRE REMOTE HOOK-UP, (cont’d.)
Installation (Remotes)
10 A
25O V
RELAY
5 A
25O V
RELAY
10 A
25O V
RELAY
TPROBE
AUX2
POWERLIMITSG VALVEIGN MODULE
24 VAC
PV
PV/MV
MV
PV/MV
PV
MV
24 VAC
H LIMIT
T FUSE
PRESS
BLOWER
A.C LOAD (PUMP/AUX2)
(PILOT DUTY ONLY)
3
4
1234 123 123456 12 12
1
2
3
1
F
2
TEMPERATURE
DISPLAY MODE
POOL
3
C
5 A FUSE
FOR AUX2 (PILOT DUTY ONLY)
2
13
(AUX1)
REMOTE
AIR PRESS
POOL
SPA
GND
POOL
SPA
GND
BLOWER (POWER) LINE
BLOWER (POWER) LINE
PUMP/AUX2
PURGE PUMP
MODE
135
642
531
246
J1 J2
REMOTE POOL/OFF/SPA
THERMOSTAT SELECT SWITCH
}NOT USED
COMMON
SPA
3 WIRE REMOTE
This icon is not a fault icon
but instead indicates a remote
switching device is connected
to the Pentair Temperature
Controller 7800, and has
overriding selection control
of Pentair Temperature
Controller 7800.
Figure 8.

P/N 472032 Rev. A 1-2-02
10
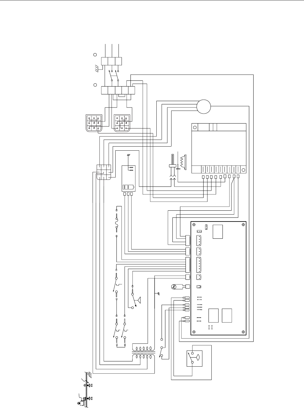
Installation (Dual Voltage Wiring)
MiniMax NT Standard (ALL MODELS) HSI Electronic Ignition Wiring Diagram
(DUAL VOLTAGE)
GRN
IGN MODULE
BURNER
FENWAL
GND
MV1
TH
S2
L2
L1
S1/240
MiniMax NT STANDARD ALL MODELS WIRING DIAGRAM
IF ORIGINAL FACTORY WIRING MUST BE REPLACED, INSTALLER MUST SUPPLY
UL OR CSA (IF CANADA) APPROVED WIRE, 18 GAUGE, 600V, 105˚ C TEMPERATURE RATING.
THERMAL FUSE WIRING MUST BE REPLACED WITH UL OR CSA (IF CANADA) APPROVED
WIRE, 18 GAUGE, 600V, 200˚ C TEMPERATURE RATING.
INTERCONNECTING WIRING TO APPLIANCE MUST CONFORM TO THE NATIONAL ELECTRICAL
CODE OR SUPERCEDING LOCAL (WIRING) CODES.
SHEET METAL
GROUND SCREW WITH PAINT CUTTING WASHER
TERMINATE SUPPLY SAFETY GROUND WIRE (GREEN) HERE
CHASSIS
BOND LUG
EXTERNAL
ORG
WHT
GRN
2
1
3
2
1
4
3
2
5
1
4
3
6
2
1
F2
F1
P11
P10
P7
P4
ORG
RED
THERMAL FUSE
WHT
BLU
RED
SWITCH
WATER PRESSURE
THERMAL SWITCHES
EXHAUST HIGH LIMIT
SPDT EXTERNAL SWITCH
GAS VALVE
BLU
WHT
RED
432112312345612
10A
250V
RELAY
RELAY
250V
10A
5A
250V
RELAY
LIMITS VALVE MODULEPOWERTPROBE
REMOTE
AUX2
123
FC
BLOWER
2
1
3
1
2
PENTAIR 7800
TEMPERATURE
PROBE
RED
HIGH LIMIT
THERMAL SWITCHES
COM
SPA
POOL
1
2
3
4
5
3
2
1
GRN
AIR
AIR PRESSURE SW.
ORG
BLU
RED
WHT
BLOCK
TERM BBLOCK
TERM A
WHT
WHT
BLK
WHT
BLK
WHT
RED
RED
WHT
WHT
WHT
WHT
WHT
BLOWER
BLK/WHT
BLK
RED/WHT
RED
PUR
ORG
WHT
BLK
FOR 120 VAC
FOR 240 VAC
YEL
BLU
WHT
S1/120
LO/FS
WHT
BLK
120 VAC
OR
240 VAC
BLK
WHT
BLK
BLK
YEL
CON-2F
CON-2F
CON-2M
ORG
WHT
RELAY
PRESS SW.
TFUSE GAS IGN
PUMP RELAY
WHT
WHT
(WHT)
WHT
BLK
(BRN)
GRN
(BLU)
HOT SURFACE
IGNITOR
FLAME SENSOR
GRY

Rev. A 1-2-02 P/N 472032
11
PLUMBING CONNECTIONS
The MiniMax NT Standard heater has the unique
capability of direct schedule 40 PVC plumbing
connections. A set of bulkhead fittings is included with
the MiniMax NT Standard to insure conformity with
Pentair’s recommended PVC plumbing procedure.
Other plumbing connections can be used.
CAUTION
Before operating the heater on a new installation,
turn on the circulation pump and bleed all the air
from the filter using the air relief valve on top of the
filter. Water should flow freely through the heater.
Do not operate the heater unless water in the pool/
spa is at the proper level.
MANUAL BY-PASS
Where the flow rate exceeds the maximum 120
GPM, a manual bypass should be installed and
adjusted. After adjustments are made, the valve
handle should be removed to avoid tampering.
WATER CONNECTIONS
Reversible Inlet/Outlet Connection
The MiniMax NT Standard heater is factory
assembled with right side inlet/outlet water
connections. The inlet/outlet header can be reversed
for left side water connections without removing the
heat exchanger.
Reversing Water Connections
Tools required:
1/4 in. Screw Driver
9/16 in. Socket and Wrench
1/2 in. & 9/16 in. Open Wrench
1. Remove the right and left large inspection plates.
2. Disconnect all wires from the high-limit
switches except the short jumper wire.
3. Disconnect the pressure switch wiring.
4. Remove the temperature sensing bulb from the
inlet/outlet header. Note: If needed, you may cut
the wire ties holding them together.
5. Remove the 16 bolts holding the main inlet/
outlet head and return head in place, exchange
the heads, using the new tube seals supplied
with the heater, re-install the 16 bolts using
moderate torque.
6. Install the temperature sensing probe by passing
the wires through the hole provided on the left
side of the brace panel. Route wires through the
support bracket.
7. Reconnect all the high limit wires and the
pressure switch wiring, routing the wires
through the same hole as the thermostat sensor
wires.
8. Re-install the two large inspection plates on the
appropriate side.
PLUMBING
VALVES
When any equipment is located below the surface of
the pool or spa, valves should be placed in the
circulation piping system to isolate the equipment
from the pool or spa.
Check valves are recommended to prevent back
siphon.
CAUTION
Exercise care when installing chemical feeders so
as to not allow back siphoning of chemical into the
heater, filters or pump.
ledoM)MPG(.niM*)MPG(.xaM
00202021
05203021
00303021
00404021
dednemmocermumixamehtdeecxetonoD*
.gnipipgnitcennocehtrofetarwolf
Installation (Plumbing)
BELOW POOL INSTALLATION
If the heater is below water level, the pressure
switch must be adjusted. This adjustment must be
done by a qualified service technician. See Page 19,
Figure 19.
PUMP
FILTER
POOL
HEATER
CHECK
VALVE
MANUAL
BY-PASS
TO
POOL
GATE
VALVE
CHECK
VALVE
FROM
POOL
Figure 9.

P/N 472032 Rev. A 1-2-02
12
Installation (Gas Line)
GAS CONNECTIONS
GAS LINE INSTALLATIONS
Before installing the gas line, be sure to
check which gas the heater has been
designed to burn. This is important
because different types of gas require
different gas pipe sizes. The rating plate
on the heater will indicate which gas the
heater is designed to burn. Table 1., shows which
size pipe is required for the distance from the gas
meter to the heater. The table is for natural gas at a
specific gravity of .65 and propane at a specific
gravity of 1.5.
When sizing gas lines, calculate three (3) additional
feet of straight pipe for every elbow used.
When installing the gas line, avoid getting dirt,
grease or other foreign material in the pipe as this
may cause damage to the gas valve, which may
result in heater failure.
The gas meter should be checked to make sure that
it will supply enough gas to the heater and any other
appliances that may be used on the same meter.
The gas line from the meter will usually be of a
larger size than the gas valve supplied with the
heater. Therefore a reduction of the connecting gas
pipe will be necessary. Make this reduction as close
to the heater as possible.
The heater and any other gas appliances must be
disconnected from the gas supply piping system
during any pressure testing on that system, (greater
that ½ PSIG).
The heater and its gas connection must be leak
tested before placing the heater in operation. Do not
use flame to test the gas line. Use soapy water or
another nonflammable method.
A manual main shut-off valve must be installed
externally to the heater.
Pipe Sized For Length Of Run In Equivalent Feet
ledoM
002
052
003
004
.ni2/1.ni4/3.ni1.ni¼1.ni½1.ni2
taNPLtaNPLtaNPLtaNPLtaNPLtaNPL
-'02'03'08'521'052'054'006 ----
-'01'02'05'07'051'052'005'006 ---
-- '01'03'05'001'002'053'004'006--
--- '01'02'06'001'051'002'054'004-
REGULATED MANIFOLD PRESSURE TEST
1. Attach the manometer to the heater jacket.
2. Shut off the main gas valve.
3. Remove 1/8 in. NPT plug on the outlet side of the
valve and screw in the fitting from the manometer kit.
4. Connect the manometer hose to the fitting.
5. Turn on the heater.
6. The manometer must read 4 in. WC for natural gas
or 11 in. WC for propane, while operating.
7. For adjustment, remove the Regulator Adjustment
Cap and using a screwdriver turn the screw clock-
wise to increase - counterclockwise to decrease gas
pressure.
Table 1.
Natural
Maximum inlet gas pressure 10 in. WC 14 in. WC
Minimum inlet gas pressure **5 in. WC 12 in. WC
Normal manifold pressure 4 in. WC 11 in. WC
*All Readings are taken with the heater fired. Any adjustments
or readings made with heater off will give incorrect readings.
** 6 in. WC for 400 model
OFF
ON
Regulator Adjustment Cap
1/8" NPT Plug
(Manifold Press)
1/8" NPT Plug
(Inlet Press)
Figure 10.
CAUTION
The use of Flexible Connectors (FLEX) is NOT
recommended as they cause high gas pressure drops.
MINIMAX NT STANDARD GAS PRESSURE REQUIREMENTS*
WARNING
Do not install the gas line union inside the heater
cabinet. This will void your warranty.
Propane

Rev. A 1-2-02 P/N 472032
13
INDOOR VENTING—General Requirements
The vent pipe must be the same size or larger. The MiniMax NT Standard heaters are capable of a 360-degree
discharge rotation and operate with a positive vent static pressure and with a vent gas temperature less than
400° F. The total length of the horizontal run must not exceed the length that is listed below in the tables.
Please note the allowable vent runs for each stack pipe diameter are different and can not be exceeded.
Note that each 90-degree elbow reduces the maximum horizontal vent run by 8 feet and each 45-degree elbow
in the vent run reduces the maximum vent run by 4 feet. See the tables below for the maximum vent lengths
using a 90-degree and 45-degree elbows. The MiniMax NT Standard induced-draft pool and spa heater uses
positive pressure to push flue gases through the vent pipe to the outside. This requires a completely sealed vent
system—single wall vent pipe with sealed-seams and joints may be used. Flue gases under positive pressure
may escape into the dwelling with any cracks or loose joints in the vent pipe, or improper vent installation.
The vent pipe must be of a sealed-seam construction such as those listed for use with category III appliances.
Alternately, single wall or double-wall type B duct which has had duct seams and joints permanently sealed
using cements or other suitable means which are rated for use at the flue gas temperatures of 325° F. and are
permanent are acceptable. The use of listed thimbles, roof jacks and/or side vent terminals are required; and the
proper clearances to combustible materials must be maintained in accordance with type of vent pipe employed—
in the absence of a clearance recommendation by the vent pipe manufacturer, the requirements of the Uniform
Mechanical Code should be met. The ventilation air requirements for the MiniMax NT Standard heater and
can be found on page 15. It is recommended that vent runs over 18 feet be insulated to reduce condensation
related problems and/or the use of a condensate trap in the vent run close to the heater may be necessary in
certain installations such as cold climates. The MiniMax NT Standard is suitable for through-the-wall venting.
Recommended sources for Side-wall vent hood terminals include: The Field Controls Co. (2308 Airport Road,
Kingston, NC 28501, (800)742-8368) and Tjernlund Products Inc. (1601 Ninth Street, White Bear Lake, MN
55110, (800) 255-4208)—consult manufacturer for model information and availability.
CAUTION
Do NOT combine exhaust vent pipes to a common exhaust vent in multiple unit installations. Run separate vent pipes.
).tf.viuqE(tnev.D.O.ni5,nuRtneVmumixaM.tf54
swoble°09lanoitiddA
wobletsrifretfa
swoble°54lanoitiddA
wobletsrifretfa
ytitnauQ.xaMdecudeRytitnauQ.xaMdecudeR
)latot2(173)latot2(14
)latot3(292)latot3(73
)latot4(312)latot4(33
).tf.viuqE(tnev.D.O.ni4,nuRtneVmumixaM.tf22
swoble°09lanoitiddA
wobletsrifretfa
swoble°54lanoitiddA
wobletsrifretfa
ytitnauQ.xaMdecudeRytitnauQ.xaMdecudeR
)latot2(1.tf41)latot2(.tf81
)latot3(2—)latot3(.tf41
)latot4(3—)latot4(—
Installation (Indoor)

P/N 472032 Rev. A 1-2-02
14
INDOOR INSTALLATION (USA ONLY)
OUTDOOR SHELTER INSTALLATION (CANADA)
See page 15 for (Indoor) Vent Adaptors
All products of combustion and vent gases must be
completely removed to the outside atmosphere through
a vent pipe which is connected to the stack adaptor. A
vent pipe extension of the same size must be connected
to the indoor stack adaptor and extended at least 2 feet
higher than highest point of the roof within a 10 foot
horizontal radius, and at least 3 feet higher than the
point at which it passes through the roof, or as permitted
by local code; see Figures 11 and 12. The vent should
terminate with an approved vent cap (weather cap) for
protection against rain or blockage by snow. Double-
wall vent pipe and an approved roof jack shall be
employed through the roof penetration.
The heater must be located as close as practical to a
chimney or gas vent.
CAUTION
The heater should be installed at least 5 feet away
from the pool or spa.
The heater must be placed in a suitable room on a non-
combustible floor or on a non-combustible base and in
an area where leakage from heat exchanger or water
connections will not result in damage to the area
adjacent to the heater or the structure. When such
locations cannot be avoided, it is recommended that a
suitable drain pan with adequate drainage, be installed
under the heater. The pan must not restrict air flow.
Installations in basements, garages, or underground
structures where flammable liquids may be stored must
have the heater elevated 18 inches from the floor using
a non-combustible base. The following minimum
clearances from combustible materials must be
provided.
Side Front Back Top
Water Connection 18 in. 24 in. - -
Remaining 6 in. - 6 in. -
Ceiling Clearance - - - 18 in.*
*To ceiling or roof.
Vent
Cap
Ridge
Chimney
3 ft. min.
2 ft. min.
10 ft.
Roof
Jack
AIR SUPPLY
VENTILATION
AIR SUPPLY
GAS COMBUSTION
OPTIONAL SIDE WALL VENT NT
VENT CAP AND
RISER FURNISHED
BY INSTALLER
Installation (Indoor)
DOOR
6"
6"
24"
18"
Figure 13.
Figure 11.
Figure 12.
The heater should not be installed closer than 6
inches to any fences, walls or shrubs at any side or
back, nor closer than 18 inches at the plumbing side.
A minimum clearance of 24 inches must be
maintained at the front of the heater.

Rev. A 1-2-02 P/N 472032
15
.oNtraP.aiDtneV
605064.ni4
705064.ni5
Figure 15.
YLPPUSRIADERIUQER
ledoM
noitsubmoCrofriA
.nI.qS
noitalitneVriA
.nI.qS
002002002
052052052
003003003
004004004
ledoMtiKesaBelbitsubmoC-noN
002169174
052905064
003069174
004805064
Installation (Indoor)
NOTE
The heater requires two uninterrupted air supply
openings; one for ventilation and one to supply
oxygen for proper gas combustion. The air supply
openings should be sized according to Table 2.
Air supply requirements below apply to all
MiniMax NT Standard heaters*.
CAUTION
Chemicals should not be stored near the heater
installation. Combustion air can be contaminated by
corrosive chemical fumes which can void the warranty.
*NOTE
The openings listed in Table 2. are free open vent
area—if the vents incorporate restrictive louvers,
the vent openings must be increased to
compensate for the area blocked by the louvers (or
grills).
b) Construct a non-combustible base from masonry
blocks as illustrated, see Figure 14.
I
NSTALLATION ON FLOORS CONSTRUCTED
OF COMBUSTIBLE MATERIALS
The heater may be placed on a “combustible floor”
using either of the two methods listed below:
a) Use Listed Factory Non-combustible Base Kit
for use on combustible floors.
INDOOR VENT ADAPTORS
(FITS ALL MODELS)
The proper draft hood and adapter must be installed on
the heater as shown below and on pages 13 and 14:
BASE FOR USE ON COMBUSTIBLE FLOORS
24 GA. (MIN.) GALVANIZED SHEET METAL.
FOR AIR CIRCULATION). COVER BLOCKS WITH
(LAID WITH ENDS UNSEALED AND JOINTS MATCHED
HOLLOW MASONARY BLOCKS, NOT LESS THAN 4" THICK
SHEET METAL
BLOCKS
6" Min.
6" Min.
Figure 14.
Indoor Vent
Adaptor
Table 2.

P/N 472032 Rev. A 1-2-02
16
Detail H
INDOOR INSTALLATIONS
MINIMAX NT STANDARD VENTING GUIDELINES
vent terminated at
least 24" above
any object within 10 ft.
Vent
Cap
Ridge
Chimney
3 ft. min.
2 ft. min.
10 ft.
4'
7'
4'
Air Supply
Ventilation
Air Supply
Combustion
Vent Hood
Walkway
3'
1' min.
1' min.
1' min.
above grade
Vent Hood
Vent Hood
E
H
D
F
G
G
F
BC
A
must extend at least 3 ft. higher than the
point at which it passes through the roof,
or as permitted by local code.
must use a double-wall vent pipe through
the roof penetration.
must terminate with an approved (listed)
roof jack, storm collar, and vent/weather cap.
must be not less than 7 ft. above public walkways.
must be at least 3 ft. above any outside air intake located within a 10 ft. radius.
must NOT be within 3 ft. of an inside corner of the structure.
must be at least 1 ft. above grade.
must be located the following distances away from any door, window, or gravity air inlet:
4 ft. below
4 ft. horizontally
1 ft. above
Air Supply
See Air Supply Requirements Table.
B
A
D
E
F
J
K
L
C
G
Vent termination for side wall installations:
must be the same diameter as the
vent connector.
must be suitable for use with category III
appliances which have flue gas temperatures
of less than 400 deg. F.
may use a single wall vent pipe with
permanently sealed seams and joints.
Vent pipe extension:
Vent for roof penetration installations:
L
J
K
Recommended sources for
side wall Vent Hood; see page 15,
Section Venting.
(Table 2. on page 15.)
Figure 16.
Installation (Indoor)

Rev. A 1-2-02 P/N 472032
17
VENTILATION
OUTDOOR INSTALLATION ONLY (Outdoor Shelter Installation in Canada, see page 14)
For outdoor installation with built in vent, the heater must be placed in a suitable area on a level, noncombustible
surface. Do not install the heater under an overhang with clearances less than 3 feet from the top of the heater. The
area under an overhang must be open on three sides.
IMPORTANT!
In an outdoor installation it is important to ensure water is diverted from overhanging eves with a
proper gutter/drainage system. The heater must be set on a level foundation for proper drainage.
Maintain minimum clearances as indicated below. Install a minimum of 4 feet below, and 4 feet horizontally from
any opening to a building, see Figure 17.
IMPORTANT!
When locating the heater, consider that high winds can roll over or deflect off adjacent buildings
and walls. Normally, placing the heater at least three feet from any wall will minimize downdraft.
NOTE
This unit shall not be operated outdoors at temperatures below -20o F. for natural gas.
Installation (Outdoor)
MINIMAX NT VENTING GUIDELINES
OUTDOOR INSTALLATION
B
C
D
Must be not less than 7 ft. above public walkways.
Must be at least 3 ft. above any forced
air inlet located within a 10 ft. radius.
A
B
C
D
E
Vent Termination:
Check local building codes
for setback requirements.
Property Line
4'
1'
4'
4'
Walkway
3'
A
Must be located the following distances away
from any door, window, or gravity air inlet:
4 ft. below, or
4 ft. horizontally, or
1 ft. above
E
Figure 17.

P/N 472032 Rev. A 1-2-02
18
GENERAL DESCRIPTION
The MiniMax NT Standard Pool and Spa Heater is a fan-assisted induced draft appliance. The MiniMax NT
Standard is available in 200,000, 250,000, 300,000 and 400,000 btu/hr. capacities and are certified for both
indoor and outdoor installations.
The MiniMax NT Standard is designed to operate both in stackless outdoor installations and in indoor stack
vent installations—the indoor installation may be made using Kit 460506 or 460507; see pages 6 and 15,
vertical vent pipe or with a horizontal vent pipe and a Listed side-wall vent.
BASIC SYSTEM OPERATION
TO OPERATE HEATER
1. Start pump, make sure the pump is running and is primed, to close water pressure switch and
supply power to heater.
2. Set thermostat to lowest setting by using up/down arrow keys. See page 22.
3. Push the off key on the Pentair temperature controller 7800 (the amber “off “ led will illuminate).
See page 21.
4. Open the access doors.
5. Push in the gas control knob slightly and turn the knob clockwise to “OFF”.
See page 5 for Instructions.
6. Wait (5) minutes to clear out any gas. If you then smell gas STOP. Follow the safety information
(stated earlier in the lighting instructions section). If you don’t smell gas, go to the next step.
See page 5 for Instructions.
7. Turn the knob on the gas control counter clockwise to the “ON” position. See page 5 for Instructions.
8. Replace the doors.
9. Push either the “Pool” or “Spa” key to start the heater. NOTE: “Pool” key is Factory set at 78° F. and
“Spa” key is set at 104° F.
10. Set the thermostat if needed by using the up/down arrows to set the desired temperature.
a. Fan motor starts, which closes draft proving switch.
b. Ignition module is energized after fan prepurge cycle is completed approximately 2 minutes.
c. Check for powering up the (glow coil) hot-surface ignitor by viewing through the opening holes
on the face plate.
11. The ignitor will warm up and then gas valve opens to ignite the main burners.
12. Heater will operate until desired temperature is reached.
Basic Operation

Rev. A 1-2-02 P/N 472032
19
SAFETY CONTROLS
AIR PRESSURE (FAN) SWITCH
The air pressure switch is a safety device used to insure that the blower (fan) is operating and has been designed
to monitor the vacuum (negative) pressure within the blower housing. The air pressures switch is factory set
and is in the ignition module circuit—the ignition module does not operate unless the air pressure switch and
all safety switches are closed.
Basic Operation
AIR PRESSURE SWITCH
Adjustment Knob
Typical Water Pressure Switch
Figure 18.
Figure 19.
WATER PRESSURE SWITCH
The water pressure safety switch closes when there is a sufficient flow of water to the heat exchanger to safely
operate the heater. The switch operation must be verified during initial operation of the heater after installation—
the switch is set at 1 PSIG and the switch contacts must not be closed in the absence of water flow. NOTE: See,
Below Pool Level Installation instructions on page 11. The switch may remain closed with no water flow if
there is more than a 3 feet elevation difference between the heater (heat exchanger) and the pool water line—
if this is the case, the water pressure switch must be reset to maintain open switch contacts with no water flow.
NOTE
If the pool is more than one floor above or one floor below the heater, the pressure switch may have to be
replaced with a flow switch.

P/N 472032 Rev. A 1-2-02
20
SAFETY CONTROLS, (cont’d.)
IGNITION MODULE
The Ignition Module is microprocessor based and operates on 24 VAC supplied by the transformer. The
control utilizes a microprocessor to continually and safely monitor, analyze, and control the proper operation
of the gas burners. The module with the presence of the flame sensor/ignitor or remote sensor, using flame
rectification, allows the heater to operate.
HIGH LIMITS
A “High Limit”, is a safety device that opens the electrical circuit and shuts off the heater based on a
temperature set point within the “High Limit Device”. The MiniMax NT Standard series of heaters contains
three (3) high limit devices, two (2) are located on the main inlet / outlet header, one sensing the inlet water
temperature and one sensing the outlet water temperature. The third high limit is located on the exhaust
outlet and senses the temperature of the flue gas.
OPERATION OF IGNITION MODULE
HEAT MODE
•When a call for heat is received from the thermostat supplying 24 VAC to the “W” module terminal, the
control will perform a self check routine for up to four seconds and begins the safety timing ignition
sequence. After the fan prepurge cycle, the hot surface ignitor is activated for a heat-up period followed
by energization of the gas valve for the trial for ignition period.
• When flame is detected during the trial for ignition, the ignitor is deactivated and the gas valve remains
energized. The thermostat and main burner flame are constantly monitored to assure the system
continues to operate properly. When the thermostat is satisfied and the demand for heat ends, the main
valve is de-energized immediately.
FAILURE TO LIGHT-LOCK OUT
Should the main burner fail to light, or flame is not detected during the trial for ignition period, the control
will go into lockout and the gas valve will be turned off immediately. The thermostat controller will display
a flame failure error (icon/service LED) and recovery from lockout requires a manual reset by either
resetting the 7800 Thermostat or removing 24 VAC from the system by turning off main power switch
(located on the junction box behind right door) for a period of 5 seconds.
FLAME FAILURE—RE-IGNITION
If the established flame signal is lost while the burner is operating, the control will respond within 1 second.
The gas valve is de-energized and the control starts a new ignition sequence in an attempt to relight the
burner. If the burner does not relight, the control will go into lockout, requiring a manual reset.
Basic Operation

Rev. A 1-2-02 P/N 472032
21
MINIMAX NT STANDARD PENTAIR TEMPERATURE CONTROLLER 7800
(See Figure 20, for keypad and Pentair Temperature Controller 7800 layout details.)
GENERAL
The MiniMax NT Standard Pentair Temperature Controller 7800 is the heart of the control
system. It controls all functions of the heater after first verifying that all safety controls
are functioning normally. If a malfunction is detected, the Pentair Temperature Controller
7800 will flag the error with both the RED “Service” LED lighting and a corresponding
LCD icon appearing on the Pentair Temperature Controller 7800, pin pointing the affected
safety control(s). NOTE: The exception is the AUX (REMOTE) LCD icon which appears
when a REMOTE Control (or Remote Switch) is connected to the Pentair Temperature
Controller 7800, which overrides the “POOL” and “SPA” keypads on the control, giving
“ON” selection control to the REMOTE.
BASIC THERMOSTAT OPERATION
The Pentair Temperature Controller 7800 comes pre-programmed for use with the spa
temperature set at 104° F. and the pool temperature set for 78° F.— and with default
display mode set to display degrees F. (this may be adjusted to display in degrees C. with
jumper on back of board), see Figure 20.
You need not do anything further to enjoy your heater other than set it in the pool or spa mode by depressing the key
located under the corresponding “POOL” or “SPA” LED light. The LED above the selection will light and the
corresponding “POOL” or “SPA” LCD icon on the display will appear.
NORMAL OPERATION (NO REMOTE)
Each temperature setting in either POOL or SPA mode is settable independently.
If the Factory’s presetting of 78° F. for “Pool” and 104° F. for “Spa” is not desirable, you may adjust these settings. See
page 22 for changing the Factory Temperature Settings. To set the temperature while in SPA mode press the TEMP UP
key (with UP arrow) to increase or TEMP DOWN (with DOWN arrow) to decrease the set temperature to that desired.
NOTE: The left hand display indicates the current real-time temperature. To set the temperature for POOL mode, first
switch to POOL mode by depressing the “POOL” key and repeat the temperature setting procedure in this example. The
Pentair Temperature Controller 7800 remembers the last set temperature for both the POOL and SPA mode and you may
cycle between the two settings with the POOL and SPA selector keys.
In NORMAL operation, pressing the MODE key allows you the cycle between the right-hand display showing the SET
TEMP for the currently active POOL or SPA or the TIME.
Thermostat (Programming & Layout)
DAY ICON
TFUSEAUXFANPRESSH-LMTIGN
DISPLAY IN TIME MODE ONLY
POWER
SERVICE
SYSTEM
HEAT
OFF SPAPOOL TEMP
TEMP
CURRENT TEMP SET TEMP/TIME
NORMAL
FLASH IN PROGRAM MODE
KEYPAD SWITCHES
ALTERNATE DISPLAY
SET
MODE
ALTERNATE DISPLAY C or F.
FAULT CONDITION LCD ICONS
POOL OR SPA
(DISPLAY ALTERNATELY
ON LCD TO SHOW ACTIVE SELECTION)
PROGRAM STEP
F = FAHRENHEIT
C = CELSIUS
P = P.M.
BLANK = A.M.
F = FAHRENHEIT
C = CELSIUS
(Pentair Temperature Controller 7800 Layout)
This icon is not a fault icon
but instead indicates a remote
switching device is connected
to the Pentair Temperature
Controller 7800, and has
overriding selection control
of Pentair Temperature
Controller 7800.
Figure 20.

P/N 472032 Rev. A 1-2-02
22
OFF SPAPOOL
SET
MODE
PROGRAM
TEMP
TEMP
STEP
Increase
Raise
( ) Decrease
Lower
( )
1. Before changing the temperature, make sure the “Temperature” is in the right window, see pages 22
and 23, if “Time” is displayed, press the MODE key to change to the “Temperature Mode”.
2. To change the Pool Temperature setting, press the POOL key.
SET
MODE
PROGRAM
TEMP
TEMP
STEP
until the desired setting is displayed.
NOTE: During Programming of the Pool Temperature, the two buttons on the
right are used to or the display setting numbers.
NOTE: Pool Temperature is now set.
4. You can leave the right window displaying the set “Temperature” or by pressing
the MODE key, you can return to the “Time” Mode.
NOTE: To re-set the Spa Temperature, follow the above steps 1. through 4.
while in the “Spa Heating” Mode.
3. To Raise or Lower the Pool Temperature setting, press the proper TEMP key
TEMP
TEMP
STEP
OFF SPAPOOL
Increase
Raise
( ) Decrease
Lower
( )
TO CHANGE THE FACTORY TEMPERATURE SETTINGS:
TIME SETTING
1. Make sure heater is turned “OFF” and not in the POOL or SPA “ON” Mode.
2. Place the Controller in Programming Mode by depressing the SET and MODE buttons at the same time.
NOTE: During Programming of the Time Setting, the two buttons on the right
are used to or the display setting numbers.
Temperature & Time Setting (Programming)

Rev. A 1-2-02 P/N 472032
23
Time Setting (Programming)
TIME SETTING, (cont’d.)
3. The first setting, once you enter the Programming Mode, will be the Day. The
Day icon will be flashing. Use the UP or DOWN arrow TEMP keys to locate
the appropriate day, then press the SET key. The Day is now set and the Hour
Time icon will start to flash.
4. With Hour Time icon flashing, use the UP/DOWN arrow TEMP keys. Set the
Hour to the proper time, “P” will show to the right for PM, and blank for AM.
Once the proper Hour is visible, press the SET key. The Minute icon’s will
now start flashing.
5. With the Minute icon’s flashing use the UP/DOWN arrow TEMP keys and
select the proper Minute setting, then press the SET key. The Day and Time are
now set and the Day icon will be flashing.
6. Press the SET and MODE keys at the same time to return to the Operational Mode.
SET
MODE
PROGRAM
TEMP
TEMP
STEP
SET
MODE
PROGRAM
TEMP
TEMP
STEP
SET
MODE
PROGRAM
TEMP
TEMP
STEP
SET
MODE
PROGRAM
D
D
D
NOTE
During the programming of the CLOCK/DAY function, you touch only the MODE key and a appears
in the upper left corner of the “Current Temperature Display Area”, this represents a delay function and
will be used for future functions and accessories to the MiniMax NT Standard. When the appears,
simply stop the programming, “do NOT touch any key for 30 seconds”, the controller will automatically
return to the operating mode, now by pressing the “SET & MODE keys” at the same time, you will
re-enter the programming function, and the icon will disappear.

P/N 472032 Rev. A 1-2-02
24
MAINTENANCE INSTRUCTIONS
It is recommended that you check the following items at
least every six months and at the beginning of every
swimming season.
1. Examine the venting system. Make sure there are no
obstructions in the flow of combustion and
ventilation air.
2. Visually inspect the main burner and the hot surface
ignitor. The normal color of the flame is blue. When
flame appears yellow, burners should be inspected
and cleaned. Check ignitor for damage.
3. Keep the heater area clear and free from
combustibles and flammable liquids.
Pressure Relief Valve
In some installations, a pressure relief valve (PVR) is
required on the
MiniMax NT
Standard. To install
a PRV, carefully drill
a 3/8 in. hole in
center of 3/4 in.
NPT port (on main
header) being
careful to drill only
thru wall at bottom
of 3/4 in. NPT port
and no deeper—
now thread in the 3/4 NPT PRV. NOTE: (A.S.M.E.
version varies from illustration. It is of bronze
construction, and is supplied with the A.S.M.E. Section
IV, pressure relief valve pre-installed at factory.) Test the
relief valve at least once a year by lifting up lever.
ENERGY SAVING TIPS
1. If possible, keep pool or spa covered when not in
use. This will not only cut heating costs, but also
keep dirt and debris from settling in the pool and
conserve chemicals.
2. Reduce the pool thermostat setting to 78° F. or
lower. This is accepted as being the most healthy
temperature for swimming by the American Red
Cross.
3. Use an accurate thermometer.
4. When the proper maximum thermostat settings have
been determined, tighten the thermostat knob
stopper.
5. Set time clock to start circulation system no earlier
than daybreak. The swimming pool loses less heat at
this time.
6. For pools that are only used on the weekends, it is
not necessary to leave the thermostat set at 78° F.
Lower the temperature to a range that can be
achieved easily in one day. Generally, this would be
10° F. to 15° F., if pool heater is sized properly.
7. During the winter or while on vacation, turn the
heater off.
8. Set up a regular program of preventative
maintenance for the heater each new swimming
season. Check heat exchanger, controls, burners,
operation, etc.
SPRING AND FALL OPERATION
If the pool is being used occasionally, do not turn the heater
completely off. Set the thermostat down to 65° F. This
WINTER OPERATION
will keep the pool and the surrounding ground warm
enough to bring the pool up to a comfortable swimming
temperature in a shorter period of time.
If the pool won't be used for a month or more, turn the
heater off at the main gas valve. For areas where there is
no danger of water freezing, water should circulate through
the heater all year long, even though you are not heating
your swimming pool. The MiniMax NT Standard should
not be operated outdoors at temperatures below 0° F. for
propane and -20° F. for natural gas. Where freezing is
FOR PRV
INSTALLATION
DRILL THRU
THE NPT PORT
Figure 22.
Figure 21.
Maintenance
possible, it is necessary to drain the water from the heater.
This may be done by opening the drain valve, located at
the inlet/outlet header (see Figure 22.), allowing all water
to drain out of the heater. It would be a good practice to
use compressed air to blow the water out of the heat
exchanger. (See additional notes under Important Notices
in Introduction.)
STANDARD

Rev. A 1-2-02 P/N 472032
25
Maintenance (Water Treatment)
RULE: 7.4 to 7.6 is a desirable pH range. It is essential
to maintain correct pH, see Table 4.
If pH becomes too high (over alkaline), it
has these effects:
1. Greatly lowers the ability of chlorine to destroy
bacteria and algae.
2. Water becomes cloudy.
3. There is more danger of scale formation on the
plaster or in the heat exchanger.
4. Filter elements may become blocked.
If pH is too low (over acid) the following
conditions may occur:
1. Excessive eye burn or skin irritation.
2. Etching of the plaster.
3. Corrosion of metal fixtures in the filtration and
recirculation system, which may create brown, blue,
green, or sometimes almost black stains on the
plaster.
4. Corrosion of copper in the heater, which may cause
leaks.
5. If you have a sand and gravel filter, the alum used as
a filter aid may dissolve and pass through the filter.
CAUTION: Do not test for pH when the chlorine
residual is 3.0 ppm or higher, or bromine residual
is 6.0 ppm or higher. See your local pool supply
store for help in properly balancing your water
chemistry.
RULE: Chemicals that are acid lower pH. Chemicals
that are alkaline raise pH.
Heat exchanger damage resulting from chemical
imbalance is not covered by the warranty.
CAUTION
Muriatic Acid has a pH of about 0. Pure water is 7
(neutral). Weak Lye solution have a pH of 13-14.
pH Chart
Table 3.
Strongly Acid Neutral Strongly Alkaline
0 1 2 3 4 5 6 7 8 9 10 11 12 13 14
ALKALINITY High - Low:
"Total alkalinity" is a measurement of the total amount
of alkaline chemicals in the water, and control pH to a
great degree. (It is not the same as pH which refers
merely to the relative alkalinity/acidity balance.) Your
pool water's total alkalinity should be 100 - 140 ppm to
permit easier pH control.
A total alkalinity test is simple to perform with a reliable
test kit. You will need to test about once a week and
make proper adjustments until alkalinity is in the proper
range. Then, test only once every month or so to be sure
it is being maintained. See your local pool dealer for
help in properly balancing the water chemistry.
7.2
6.8 7.0 7.4 7.6 7.8 8.0 8.2 8.4
Add Soda, Ash or
Sodium Bicarbonate
Add AcidMarginalIdealMarginal
pH Control Chart
Table 4.
CHEMICAL BALANCE
POOL AND SPA WATER
Your Pentair Pool Products pool heater was designed
specifically for your spa or pool and will give you many
years of trouble-free service, provided you keep your
water chemistry in proper condition.
Three major items that can cause problems with your
pool heater are: improper pH, disinfectant residual, and
total alkalinity. These items, if not kept properly
balanced, can shorten the life of the heater and cause
permanent damage.
WHAT A DISINFECTANT DOES
Two pool guests you do not want are algae and bacteria.
To get rid of them and make pool water sanitary for
swimming - as well as to improve the water's taste, odor
and clarity - some sort of disinfectant must be used.
Chlorine and bromine are universally approved by health
authorities and are accepted disinfecting agents for
bacteria control.
WHAT IS A DISINFECTANT
RESIDUAL?
When you add chlorine or bromine to the pool water, a
portion of the disinfectant will be consumed in the
process of destroying bacteria, algae and other oxidiz-
able materials. The disinfectant remaining is called
chlorine residual or bromine residual. You can determine
the disinfectant residual of your pool water with a reliable
test kit, available from your local pool supply store.
You must maintain a disinfectant residual level adequate
enough to assure a continuous kill of bacteria or virus
introduced into pool water by swimmers, through the air,
from dust, rain or other sources.
It is wise to test pool water regularly. Never allow
chlorine residual to drop below 0.6 ppm (parts per
million). The minimum level for effective chlorine or
bromine residual is 1.4 ppm.
pH - The term pH refers to the acid/alkaline balance of
water expressed on a numerical scale from 0 to 14. A test
kit for measuring pH balance of your pool water is
available from your local pool supply store; see Table 3.

P/N 472032 Rev. A 1-2-02
26
NORMAL OPERATION SEQUENCE
(Refer to Figure 20 of Pentair Temperature Controller 7800 keyboard)
The heater features a fully automated firing start-up and shutdown sequence under the control of the
MiniMax NT Standard Pentair Temperature Controller 7800.
Now that the heater has been properly installed and wired for either remote operation or local operation, and
you have setup the Pentair Temperature Controller 7800 temperature setpoints as described earlier in manual
in Thermostat section, the following is the normal operating sequence when the heater turns on the and the
thermostat calls for heat for the pool or spa.
1. The fan will start beginning the heater’s safety prepurging cycle which lasts for 1 minute. If at anytime
during the prepurge cycle the Pentair Temperature Controller 7800 detects that a safety control is not
working due to either a safety control malfunction or other unsafe condition the firing sequence will stop
until the unsafe condition is removed— “the fault icon related to the problem will illuminate”.
2. After proper completion of the prepurge cycle, the hot surface ignitor (glow coil) will turn on (preheat)
for 40 seconds. Once the 40 seconds is passed, the main gas valve will open and the heater will fire. At
this time, if flame is not safely established as detected by the flame sensing circuit, the ignition module
and Pentair Temperature Controller 7800 will shut down and will display an ignition fault and luminate
the red service light. Please note that on initial firing of heater when gas supply piping is full of air or
after long period of non-operation of the heater it is normal for the first ignition attempt to not complete.
To clear the fault condition power to the Pentair Temperature Controller 7800 must be cycled to reset
system. If heater continues to fail to light have heater inspected by a qualified service person before
placing heater back in service.
Insufficient waterflow (pump icon displays), excessive water temperature (high limit icon) cause a
“soft-lockout” of the firing sequence—which means if the cause of the problem clears by itself (or with
human intervention ie., turning on pump, etc.) such as a slow to prime water pump finally pumping
adequate waterflow causing the water pressure (safety) switch to close, the ignition sequence
automatically restarts again.
The other category of fault conditions lead to a “hard lockout” of the firing sequence which require a
qualified service person to correct before the heater is returned to service. In “hard lockout” the heater
must be manually reset (by toggling power to Pentair Temperature Controller 7800) after correction of
the fault condition.
3. After normal firing of the heater (main burners) the heater will continue to operate until the
temperature setpoint is reached (thermostat satisfied). As the pool/spa loses heat the heater will refire
and continue to operate cycling automatically to maintain the selected temperature setpoint for either
the pool or spa. If at anytime during the firing of the heater an unsafe condition is detected the
heater will stop firing and an automatic safe shutdown sequence will begin. Investigate and have
corrected the cause of the abnormal firing termination before placing heater back in operation.
Please Note: During the firing of the heater, you decide to change to the pool or spa selection by
depressing the selector key for “POOL” or “SPA”, the heater will first acknowledge the new selection by
flashing the new selection’s corresponding selection LED “POOL” or “SPA”, however, the heater will first
complete a safe shutdown sequence before automatically switching to the new selected setting and safely
initiating a new firing sequence using the new temperature setpoint. During this automatic crossover
sequence the keyboard on the Pentair Temperature Controller 7800 will not accept any further keying until
the cycle completes—the exception is you may still stop the heater with the “OFF” key.
Troubleshooting—Normal Operation Sequence of Heater

Rev. A 1-2-02 P/N 472032
27
Troubleshooting—Normal Operation of Heater
Illustration of Pentair Temperature Controller 7800 with all fault icons displayed for clarity.
TFUSEAUXFANPRESSH-LMTIGN
POWER
SERVICE
SYSTEM
HEAT
OFF SPAPOOL TEMP
TEMP
CURRENT TEMP SET TEMP/TIME
NORMAL
SET
MODE
FAULT CONDITION LCD ICONS
POOL OR SPA
(DISPLAY ALTERNATELY
ON LCD TO SHOW ACTIVE SELECTION)
PROGRAM STEP
Figure 23.
SERVICE CHECKS—IGNITION MODULE
skcehCecivreS
motpmySeruC/esuaC
daeD.1deriwsiM.A
dabremrofsnarT.B
dabrekaerbtiucriC/esuF.C
)noydaetsrofDELkcehc(lortnocdaB.D
noitingion—notatsomrehT.2deriwsiM.A
WlanimrettaegatlovontatsomrehtdaB.B
rotingion,noevlaV.3rotingievitcefeD.A
deriwsiM.B
)rotingitaegatlovkcehc(lortnocdaB.C
evlavon,norotingI.4nepoliocevlaV.A
eriwevlavnepO.B
)2V&1Vneewtebegatlovkcehc(lortnocdaB.C
,IFTgnirudyakoemalF.5
)IFTretfa(esnesemalfon
rotingidaB.A
eriw1SdaB.B
renrubtadnuorgrooP.C
)tnerrucemalfkcehc(emalfrooP.D

P/N 472032 Rev. A 1-2-02
28
LEGEND OF FAULT ICONS AND TYPE OF PROBLEMS FLAGGED
This fault icon displays whenever there is an unexpected loss of flame.
This condition may arise from air in gas supply line or malfunction of flame
detection circuit or related hardware. This is a hard lockout condition
requiring a manual reset to clear.
This fault icon displays whenever one or more of safety temperature limit
switches open to flag an excessive temperature condition. This is a soft
lockout condition and if the condition clears the fault icon will clear and
normal operation of heater will proceed.
This fault icon displays whenever the thermal fuse has opened due to a flame
roll-out or other abnormal condition causing excessive temperatures in the
cabinet. The cause of the fault must be corrected and the one-shot fuse
replaced before icon can be cleared.
This fault icon displays whenever there is a failure of either the low gas
pressure switch (due to low pressure or switch failure) or additionally the fan
and/or air pressure switch circuit has failed resulting in an open safety circuit.
The nature of these faults are mission critical for the safe operation of the
heater and result in a hard lockout. The cause of the fault must be corrected
and the heater will require a manual reset by toggling the power supplied to
the 7800 Controller to clear the fault.
This fault icon displays whenever insufficient waterflow causes the water
pressure switch to fail to close. This is a soft lockout condition and will clear
by itself if the waterflow is restored. The icon will then clear and if the heater
was attempting to fire the cycle will restart and continue.
Troubleshooting & Service

Rev. A 1-2-02 P/N 472032
29
Possible Cause Remedy
Heater will not come on
Automatic ignition system fails Check if electrical connections are
correct and securely fastened –
If YES, call serviceperson.
Pump not running Place pump in operation
Pump air locked Check for leaks
Filter dirty Clean filter
Pump strainer clogged Clean strainer
Defective wiring or connection Repair or replace wires
Defective pressure switch Replace switch
Defective gas controls Call serviceperson
On-Off switch in "OFF" position Turn switch to "ON"
Heater Short Cycling (Rapid On and Off Operation)
Insufficient water flow Clean filter and pump strainer
Defective wiring Repair or replace wiring
Defective flow valve or out of adjustment Call serviceperson
Defective hi-limit and/or thermostat Call serviceperson
Heater Makes Knocking Noises,
Make sure all valves on system are open
Heater operating after pump has shut off Shut off gas supply and call serviceperson
Heater exchanger scaled Shut off gas supply and call serviceperson
Troubleshooting - General

P/N 472032 Rev. A 1-2-02
30
MINIMAX NT STANDARD HEATER - (Dual Voltage)
1
4
3
5
6
8
9
10
12
33
34
36
48 47 46 44 42
43
38
37
18
17
16
15
21
14
32
39
2
7
11
22
23
20
19
35
45
41
40
13
30
27
28
31
26
24
25
29
50
49

Rev. A 1-2-02 P/N 472032
31
Note: Some parts are not listed in above table, please contact our Customer Service Department for details.
ITEM DESCRIPTION QTY. 200 250 300 400
1 Exhaust Grill 1
2 Gasket, Exhaust Grill 1
3 Top Cover 1 471885 471692 471886 471591
4 Exhaust Assy. 1 472030 472040
5 Shut-off Safety Switch, Exhaust 1
6 Blower 1 471938 471884
7 Gasket, Blower 1
8 Flue Collector Assy. 1 472008 472007 472006 472005
9 Return Manifold Assy. Non-ASME 1
10 Bolt, Heat Exchanger, Non-ASME 16
11 Washer, Heat Exchanger 16
12 Fire box Assy. 1 471904 471835 471922 471821
13 Heat Exchanger Assy. Non-ASME 1 471910 471785 471928 471838
14 Baffle, Heat Exchanger 8 / 16(200/250/300/400) 471642 471641 471896 471640
15 Thermistor Probe 1
16 Hi-Limit Thermostat-115° F. 1
17 Hi-Limit Thermostat-150° F. 1
18 Water Pressure Switch 1
19 Main Manifold Assy. Non-ASME 1
20 Adapter, Bulkhead Ring 2
21 Adapter, Bulkhead, 2 in. 2
22 Gasket, Fin Tube, Seal 18
23 Flow Valve Assy. 1
24 Bracket, Gas Valve 1
Orifice, Natural Gas, 0-2000 Ft.
Orifice, Propane, 0-2000 Ft.
Gas Valve-Natural Gas
Gas Valve-Propane
Burner Tray Assy. Natural Gas 472042 472037 472033 472028
Burner Tray Assy. Propane 471907 471913 471925 471931
28 Igniter 1
Gas Manifold Assy. Natural Gas 472023 472022 472021 472020
Gas Manifold Assy. Propane 472027 472026 472025 472024
Burner Only 2 / 3 / 4 / 6(200/250/300/400)
Burner with Bracket 2
31 Flame Sensor 1
32 Jacket, Upper Panel, Left 1
33 Jacket Corner 4
34 Jacket Divider 1 471827 471651 471826 471580
35 Jacket, Lower Panel, Left 1
36 Base 1 471829 471645 471828 471573
37 Jacket Back 1 471861 471669 471874 471574
38 Bracket, Jacket Side 2
39 Jacket, Upper Panel, Right 1
40 Jacket, Upper Subplate, Right 2
41 Jacket, Lower Panel, Right 1
42 Base Heat Shield 1 471831 471646 471830 471579
43 Control Box Assy. 1
44 Air Pressure Switch 1 471747 471743 471897 471569
45 Module, Ignition Control 1
46 Temperature Controller 1
47 Right Door Assy. 1
48 Left Door Assy. 1 471900 471659 471918 471726
49 Bracket, Front Burner Tray 1 471891 471656 471890 471630
50 Shield, Front Burner Tray 1 471821 471655 471805 471631
NA Thermal Cut-off (Not Shown) 1
4 / 5 / 6 / 8(200/250/300/400) 073727
30 471970
25
26 471671
1
1
29
471602
070230
471581
471647
471575
471603
471985
075173
471768
471576
471767
471577
472015
471893
471565
471694
070951
471672
471601
471750
471993
274440
471441
073728
471990
472030
072184
471566
471587
27 1
MiniMax NT Standard Dual Voltage Replacement Parts
471610
471991
471622
471883
471592
471701
471714

P/N 472032 Rev. A 1-2-02
32
40
MiniMax NT Standard Heaters
Limited Warranty
Your MiniMax NT Standard pool heater is another quality product from Pentair Pool
Products, Inc. and is backed by the following warranty.
1. The following parts are warranted for 5 years from date of purchase:
The MiniMax NT Standard cabinet and combustion chamber, the main burners and
burner manifold, the inlet/outlet header and the return header. This warranty does not
cover rusting or corrosion on cabinets or burners that does not affect the heater's
operation.
2. The following parts are covered for 2 years from date of purchase:
The automatic flow control valve, all controls, heat exchanger, pilot generator and the
pilot assembly.
This warranty only applies to the original purchaser.
3. This warranty shall not apply to any units or parts which have been subject to accident,
negligence, alteration, abuse, misapplication or misuse.
The above warranty applies only if the heater is installed and operated in complete
compliance with the installation and operation manual provided with each unit. Copies of
this manual are available by writing to Pentair Pool Products, Inc., at the address below.
Pentair Pool Products, Inc. assumes no liability except for the repair or replacements of
parts as specified above. Ship defective parts or equipment along with serial number and
purchase date, transportation prepaid to the address below. Purchaser shall be responsible
for freight charges for return of merchandise to purchaser. Some states do not allow
exclusion or limitation of incidental or consequential damages so the above may not apply
to you.
This warranty gives you specific legal rights, and you may also have other rights which
vary from state to state.
HEATER SERIAL NUMBER
(Please Fill In)
Pentair Pool Products, Inc.
1620 Hawkins Ave., Sanford, NC 27330 • (919) 774-4151
10951 W. Los Angeles Ave., Moorpark, CA 93021 • (805) 523-2400