Pioneer Deh P5200 Users Manual CRD3154 A
DEH-P5200 49560CRD3154A_2000123013364530
DEH-P5200 to the manual b399c898-515a-4a7b-9c59-06389450a1d1
2015-01-26
: Pioneer Pioneer-Deh-P5200-Users-Manual-333205 pioneer-deh-p5200-users-manual-333205 pioneer pdf
Open the PDF directly: View PDF
.
Page Count: 8

INSTALLATION MANUAL
MANUEL D’INSTALLATION
<99K00F0P01>
DEH-P5200
Printed in Thailand
Imprimé en Thaïlande
<CRD3154-A/N> UC
Connecting the Units <ENGLISH>
Note:
• This unit is for vehicles with a 12-volt battery and
negative grounding. Before installing it in a recre-
ational vehicle, truck, or bus, check the battery
voltage.
• To avoid shorts in the electrical system, be sure to
disconnect the ≠battery cable before beginning
installation.
• Refer to the owner’s manual for details on
connecting the power amp and other units, then
make connections correctly.
• Secure the wiring with cable clamps or adhesive
tape. To protect the wiring, wrap adhesive tape
around them where they lie against metal parts.
• Route and secure all wiring so it cannot touch any
moving parts, such as the gear shift, handbrake and
seat rails. Do not route wiring in places that get
hot, such as near the heater outlet. If the insulation
of the wiring melts or gets torn, there is a danger of
the wiring short-circuiting to the vehicle body.
• Don’t pass the yellow lead through a hole into the
engine compartment to connect to the battery. This
will damage the lead insulation and cause a very
dangerous short.
• Do not shorten any leads. If you do, the protection
circuit may fail to work when it should.
• Never feed power to other equipment by cutting
the insulation of the power supply lead of the unit
and tapping into the lead. The current capacity of
the lead will be exceeded, causing overheating.
• When replacing fuse, be sure to use only fuse of
the rating prescribed on the fuse holder.
• Since a unique BPTL circuit is employed, never
wire so the speaker leads are directly grounded or
the left and right ≠speaker leads are common.
• Speakers connected to this unit must be high-
power types with minimum rating of 45 W and
impedance of 4 to 8 ohms. Connecting speakers
with output and/or impedance values other than
those noted here may result in the speakers
catching fire, emitting smoke or becoming dam-
aged.
• If the RCA pin jack on the unit will not be used, do
not remove the caps attached to the end of the con-
nector.
• When this product’s source is switched ON, a con-
trol signal is output through the blue/white lead.
Connect to an external power amp’s system remote
control or the car’s Auto-antenna relay control ter-
minal (max. 300 mA 12 V DC). If the car features
a glass antenna, connect to the antenna booster
power supply terminal.
• When an external power amp is being used with
this system, be sure not to connect the blue/white
lead to the amp’s power terminal. Likewise, do not
connect the blue/white lead to the power terminal
of the auto-antenna. Such connection could cause
excessive current drain and malfunction.
• To avoid short-circuiting, cover the disconnected
lead with insulating tape. Especially, insulate the
unused speaker leads without fail. There is a possi-
bility of short-circuiting if the leads are not insulat-
ed.
• To prevent incorrect connection, the input side of
the IP-BUS connector is blue, and the output side
is black. Connect the connectors of the same
colors correctly.
• If this unit is installed in a vehicle that does not
have an ACC (accessory) position on the ignition
switch, the red lead of the unit should be connected
to a terminal coupled with ignition switch ON/OFF
operations. If this is not done, the vehicle battery
may be drained when you are away from the vehi-
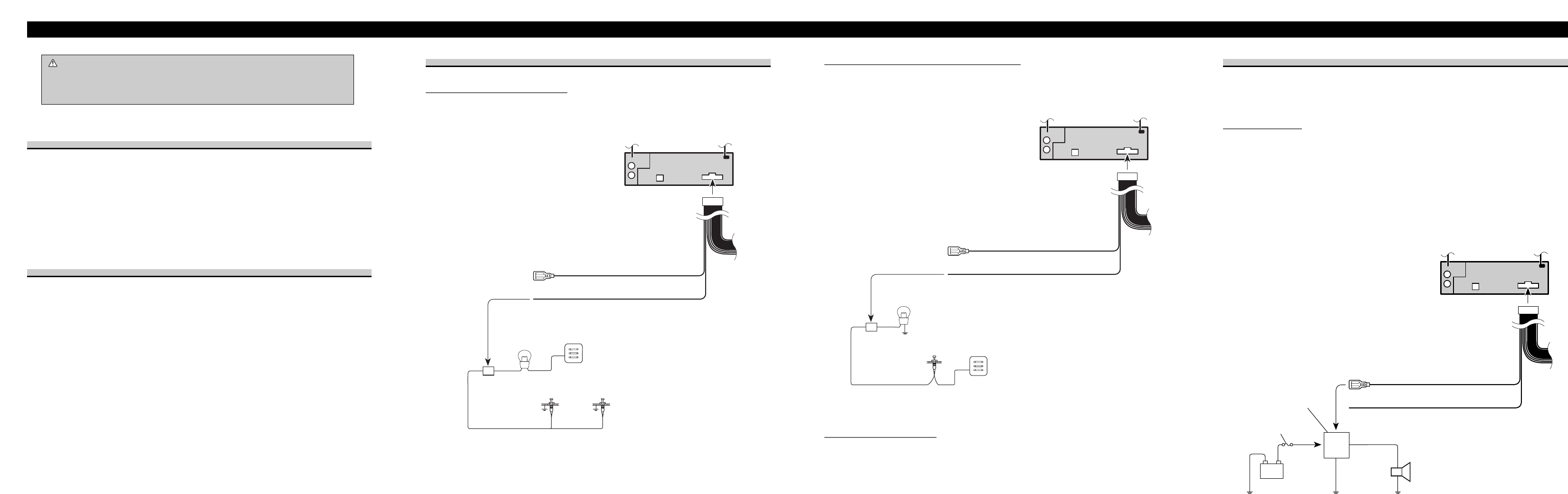
cle for several hours. (Fig.1)
Fig. 1
• The black lead is ground. Please ground this lead
separately from the ground of high-current prod-
ucts such as power amps.
If you ground the products together and the ground
becomes detached, there is a risk of damage to the
products or fire.
No ACC positionACC position
O
N
S
T
A
R
T
O
F
F
A
C
C
O
N
S
T
A
R
T
O
F
F
This product conforms to CEMA cord colors.
Le code de couleur des câbles utilisé pour ce produit est
conforme à CEMA.
• Cords for this product and those for other products
may be different colors even if they have the same
function. When connecting this product to another
product, refer to the supplied Installation manuals
of both products and connect cords that have the
same function.

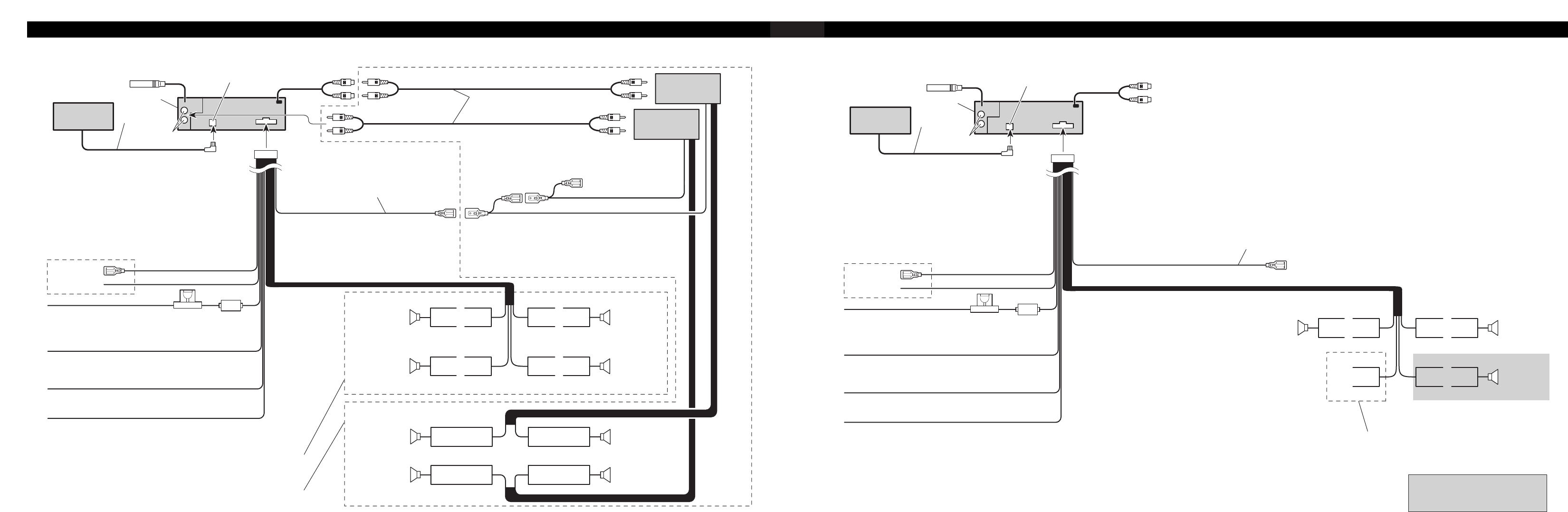
<ENGLISH>Connecting the Units
+
≠
+
≠
+
≠
Subwoofer output
This Product
Multi-CD player
(sold separately) IP-BUS cable
IP-BUS input (Blue)
Antenna jack
Front output
Yellow
To terminal always supplied
with power regardless of
ignition switch position.
Orange
To lighting switch terminal.
Red
To electric terminal controlled by
ignition switch (12 V DC) ON/OFF.
White/yellow
Brown
See the section “DFS Alarm
Installation”.
Black (ground)
To vehicle (metal) body.
Fuse holder
Subwoofer
Right
Front speaker
White Gray
White/black
Green
Green/black
Gray/black
Violet
Violet/black
Front speaker
Left
Note:
Change the Initial Setting of this product.
(Refer to the Operation Manual.)
Do not connect anything to these speaker leads.
Blue/white
To Auto-antenna relay control terminal
(max. 300 mA 12 V DC).
Fig. 3
+
≠
+
≠
+
≠
+
≠
+
≠
+
≠
+
≠
+
≠
Subwoofer output
or Non Fading output
This Product
Multi-CD player
(sold separately) IP-BUS cable
IP-BUS input (Blue)
Antenna jack
Blue/white
To system control terminal of the power amp
or Auto-antenna relay control terminal
(max. 300 mA 12 V DC).
Connecting cords
with RCA pin plugs
(sold separately)
System remote control
Front output
Subwoofer Subwoofer
Right
Front speaker
Rear speaker
White Gray
White/black
Green
Green/black
Gray/black
Violet
Violet/black
Front speaker
Rear speaker
Left
Front speakerFront speaker
Perform these connections when using a
different amp (sold separately).
With a 2 speaker system, do not connect
anything to the speaker leads that are not
connected to speakers.
Yellow
To terminal always supplied
with power regardless of
ignition switch position.
Orange
To lighting switch terminal.
Red
To electric terminal controlled by
ignition switch (12 V DC) ON/OFF.
White/yellow
Brown
See the section “DFS Alarm
Installation”.
Black (ground)
To vehicle (metal) body.
Fuse holder
Power amp
(sold separately)
Power amp
(sold separately)
Fig. 2
7When not connecting a rear speaker lead to a Subwoofer 7When using a Subwoofer without using a different amp (sold separately)

Positive (Non-grounding) Type Switch:
Ford, Jaguar, Mercedes
Note:
• Set DFS Alarm to recognize positive trigger from DFS Alarm Setting Menu. Set Door System to
“DOOR-H :CLS”.
Fig. 5
Installing New Pin Switches
Separately sold pin switches are available that can be used to protect your vehicle’s trunk,
hood, etc. When you purchase these, make sure that you first confirm that they can be used
with your vehicle’s door system type.
Follow the makers instructions as to installation and wiring.
This Product
Fuse holder
Dome light
Factory Door Switch
White/yellow
Brown (refer to “ALARM OUTPUT”.)
ALARM OUTPUT (Brown)
The brown lead provides a +12 V, pulsed output while alarm is sounding. This lead has a
maximum current capability of 500 mA and can be used to trigger a relay to sound a siren,
horn or flash lights.
Recommended Wiring:
30 amp relay (sold separately) required to operate siren, horn or lights.
• Connect Brown wire to one side of relay coil.
• Connect ground to other side of coil.
For sirens, horns or lights requiring +12 V trigger
• Connect normally open pin to fused, constant +12 V source.
For horns or lights requiring ground trigger
• Connect normally open pin to ground.
Fig. 6
≠ +
30 A
This Product
Car battery
30 A Fuse
(Sold separately)
Horn/Siren, etc.
CONTROL
BATT
GND
OUTPUT
RELAY
(Sold separately)
Brown
White/yellow (refer to “DOOR SWITCH”.)
<ENGLISH>DFS Alarm Installation
Affix the included deterrent stickers to the inside of the front door windows.
Description
7White/yellow (DOOR SWITCH) ........................................................................ (Fig. 4 & 5)
This lead is used to trigger DFS Alarm when any door is opened and may be connected to
either positive or negative (+/–) type door pin switches.
7Brown (ALARM OUTPUT) ........................................................................................ (Fig. 6)
This lead is a pulsed positive (+) output capable of driving up to 2 relays (500 mA) max.
Use this lead to trigger relays for siren, horn, honk or flashing lights.
Door Switches
The DFS Alarm’s door trigger input is designed to work with either positive or negative
door pin switches. After hookup, simply set door system type from DFS Alarm Setting
Menu.
Domelight Delay-DFS Alarm will wait for last door to close and courtesy light to turn off
before Exit Delay Timer Starts.
CAUTION
• Because of the complexity of today’s technically advanced vehicle wiring sys-
tems, we recommend that your DFS Alarm be installed ONLY by a professional
Pioneer installer.
DOOR SWITCH (White/yellow)
Grounding Type Switch:
GM, Chrysler, Japanese, and most European vehicles.
Note:
• Set DFS Alarm to recognize ground trigger from DFS Alarm Setting Menu. Set Door System to
“DOOR-L :CLS”.
Fig. 4
This Product
Fuse holder
Dome light
Factory Door Switches
White/yellow
Brown (refer to “ALARM OUTPUT”.)

2. Fastening the unit to the factory radio mounting bracket.
(Fig. 12) (Fig. 13)
Select a position where the screw holes of the bracket and
the screw holes of the head unit become aligned (are fit-
ted), and tighten the screws at 2 places on each side. Use
either truss screws (5 ×8 mm) or flush surface screws
(5 ×9 mm), depending on the shape of the screw holes in
the bracket.
Fig. 12
Fig. 13
11
13
12
10
DIN Rear-mount
Installation using the screw holes on the side of the unit
1. Remove the frame. (Fig. 11)
Fig. 11
Frame
Insert the release pin into the hole in
the bottom of the frame and pull out
to remove the frame.
(When reattaching the frame, point
the side with a groove downwards
and attach it.)
<ENGLISH>Installation
Screw
Dashboard or Console
Factory radio mounting bracket
Note:
• Before finally installing the unit, connect the
wiring temporarily, making sure it is all connected
up properly, and the unit and the system work
properly.
• Use only the parts included with the unit to ensure
proper installation. The use of unauthorized parts
can cause malfunctions.
• Consult with your nearest dealer if installation
requires the drilling of holes or other modifications
of the vehicle.
• Install the unit where it does not get in the driver’s
way and cannot injure the passenger if there is a
sudden stop, like an emergency stop.
• The semiconductor laser will be damaged if it
overheats, so don’t install the unit anywhere hot —
for instance, near a heater outlet.
• If installation angle exceeds 60° from horizontal,
the unit might not give its optimum performance.
(Fig. 7)
Fig. 7
60°
DIN Front/Rear-mount
This unit can be properly installed either from “Front” (conventional DIN Front-mount) or
“Rear” (DIN Rear-mount installation, utilizing threaded screw holes at the sides of unit
chassis). For details, refer to the following illustrated installation methods.
DIN Front-mount
Installation with the rubber bush (Fig. 8)
Fig. 8
182
53
Dashboard
Rubber bush
Screw
Holder
After inserting the holder into the
dashboard, then select the appropriate
tabs according to the thickness of the
dashboard material and bend them.
(Install as firmly as possible using the
top and bottom tabs. To secure, bend
the tabs 90 degrees.)
Removing the Unit (Fig. 9) (Fig. 10)
Fig. 9
Fig. 10
5
6
Insert the release pin into the hole in
the bottom of the frame and pull out
to remove the frame.
(When reattaching the frame, point
the side with a groove downwards
and attach it.)
Frame
Insert the supplied extraction keys
into the unit, as shown in the figure,
until they click into place. Keeping
the keys pressed against the sides of
the unit, pull the unit out.

Raccordements des appareils <FRANÇAIS>
Remarque:
• Cet appareil est destiné aux véhicules avec une
batterie de 12 V, avec pôle négatif à la masse.
Avant de l’installer dans un véhicule de loisir, un
camion ou un car, vérifier la tension de la batterie.
• Afin d’éviter tout risque de court-circuit,
débrancher le câble de la borne négative ≠de la
batterie avant de commencer la pose.
• Pour le raccordement des câbles de l’amplificateur
de puissance et des autres appareils, se reporter au
manuel de l’utilisateur et procéder comme il est
indiqué.
• Fixer les câbles au moyen de colliers ou de
morceaux de ruban adhésif. Pour protéger le
câblage, enrouler la bande adhésive autour des
câbles à l’endroit où ceux-ci sont placés contre les
parties métalliques.
• Acheminer et fixer tout le câblage de telle sorte
qu’il ne touche pas les pièces mobiles, comme le
levier de changement de vitesse, le frein à main et
les rails des sièges. Ne pas acheminer les câbles
dans des endroits qui peuvent devenir chauds,
comme près de la sortie de radiateur. Si l’isolation
des câbles fond ou est se déchire, il existe un dan-
ger de court-circuit des câbles avec la carrosserie
du véhicule.
• Ne pas faire passer le conducteur jaune dans le
compartiment moteur par un trou pour le connecter
avec la batterie. Cela pourrait endommager sa
gaine d’isolation et provoquer un grave court-cir-
cuit.
• Ne pas court-circuiter les conducteurs. Dans le cas
contraire, le circuit de protection risque de ne pas
fonctionner.
• Ne jamais alimenter un autre appareil par un
branchement sur le câble d’alimentation de celui-
ci. Le courant qui circulerait dans ce conducteur
pourrait dépasser la capacité du conducteur et
entraîner une élévation anormale de température.
• Lors du remplacement du fusible, n’utiliser qu’un
fusible de même ampérage (il est indiqué sur le
porte-fusible).
• Un circuit BPTL unique étant employé, n’ef-
fectuez jamais le câblage de sorte que les fils de
haut-parleurs soient directement mis à la masse ou
que les fils de haut-parleurs ≠gauche et droit
soient communs.
• Les haut-parleurs connectés à cet appareil doivent
être tels qu’ils puissent supporter une puissance de
45 W, et que leur impédance soit comprise entre 4
et 8 Ohms. L’utilisation de haut-parleurs dont la
puissance admissible ou l’impédance seraient
différentes des valeurs indiquées ici, pourrait
provoquer leur inflammation, avec émission de
fumée, ou à tout le moins leur endommagement.
• Si la prise RCA de l’appareil n’est pas utilisée, ne
retirez pas les capuchons que porte le connecteur.
•Quand la source de ce produit est positionnée sur
ON, un signal de commande est sorti par le fil
bleu/blanc. Connectez-le à la télécommande
d’ensemble de l’amplificateur de puissance extérieur
ou à la borne de commande du relais d’antenne
motorisée (max. 300 mA, 12 V CC). Si la voiture
utilise une antenne de vitre, connectez-le à la prise
d’alimentation de l’amplificateur d’antenne.
•Lorsqu’un amplificateur de puissance externe est
utilisé avec ce système, veiller à ne pas connecter
le fil bleu/blanc à la borne d’alimentation de l’am-
plificateur. De la même manière, ne pas connecter
le fil bleu/blanc à la borne d’alimentation de l’an-
tenne automatique. Un tel branchement pourrait
causer une perte de courant excessive et un mau-
vais fonctionnement de l’appareil.
•Pour éviter les courts-circuits, recouvrez les fils
déconnectés par du ruban isolant. En particulier,
n’oubliez pas d’isoler les fils d’enceintes. Un court-
circuit peut se produire si les fils ne sont pas isolés.
•Pour éviter une connexion incorrecte, le côté
entrée du connecteur IP-BUS est bleu et le côté
sortie, noir. Brancher les connecteurs de même
couleur correctement.
• Si cette unité est installée dans un véhicule dont le
contacteur d’allumage n’a pas de position ACC
(accessoire), le fil rouge de l’unité doit être con-
necté à une borne couplée aux opérations de
marche/arrêt du contacteur d’allumage. Sinon, la
batterie du véhicule peut se décharger lorsque le
véhicule n’est pas utilisé pendant plusieurs heures.
(Fig.1)
Fig. 1
• Le conducteur noir est le câble de masse. Veillez à
relier ce conducteur à une masse qui ne soit pas la
masse d’un appareil gros consommateur d’énergie
tel qu’un amplificateur de puissance.
En effet, si vous utilisez la même masse pour
plusieurs appareils et si ces masses sont
supprimées par un défaut de contact,
l’endommagement de l’appareil, voire un incendie
sont possibles.
Aucune position ACCPosition ACC
O
N
S
T
A
R
T
O
F
F
A
C
C
O
N
S
T
A
R
T
O
F
F
•Les câbles de ce produit et ceux d’autres produits
peuvent fort bien ne pas être de la même couleur
bien que remplissant la même fonction. Pour relier
ce produit à un autre produit, utilisez le manuel
d’installation de chacun et effectuez les raccorde-
ments en ne tenant compte que de la fonction de
chaque câble.

<FRANÇAIS>Raccordements des appareils
+
≠
+
≠
+
≠
+
≠
+
≠
+
≠
+
≠
+
≠
Blanc/jaune
Brun
Reportez-vous à la section
“Installation de l’alarme DFS.”
Lecteur de CD à
chargeur (vendu
séparément) Câble IP-BUS
Entrée IP-BUS (Bleu)
Ce produit
Jack d’antenne
Effectuez ces raccordements lorsque
l’installation comporte un autre amplificateur
(vendu séparément).
Dans le cas d’une installation comportant
2 haut-parleurs, ne reliez rien d’autre que
les haut-parleurs aux cordons de liaison.
Jaune
Vers une borne alimentée en
permanence indépendamment
de la clé de contact.
Rouge
Vers une borne dont l’alimentation est commandée
par la clé de contact (12 V CC).
Orange
Vers la borne du contacteur d’éclairage.
Bleu/blanc
Vers la borne de commande à distance de
l’amplificateur de puissance ou vers la borne
de commande du relais de l’antenne motorisée
(max. 300 mA, 12 V CC).
Câbles de liaison munis
de prises RCA (vendu
séparément)
Télécommande d’ensemble
Haut-parleur
arrière
Haut-parleur
arrière
Blanc Gris
Gauche Droite
Blanc/noir
Vert
Vert/noir
Gris/noir
Violet
Violet/noir
Haut-parleur
avant Haut-parleur
avant
Haut-parleur
avant Haut-parleur
avant
Sortie avant
Haut-parleur
d’extrêmes
graves
Haut-parleur
d’extrêmes
graves
Noir (masse)
Fil de masse vers un élément en
métal apparent de la voiture.
Porte-fusible
Sortie pour haut-parleur
d’extrêmes graves, ou
sortie sans atténuation
Amplificateur de
puissance (vendu
séparément)
Amplificateur de
puissance (vendu
séparément)
Fig. 2
+
≠
+
≠
+
≠
Blanc/jaune
Brun
Reportez-vous à la section
“Installation de l’alarme DFS.”
Lecteur de CD à
chargeur (vendu
séparément) Câble IP-BUS
Entrée IP-BUS (Bleu)
Ce produit
Jack d’antenne
Jaune
Vers une borne alimentée en
permanence indépendamment
de la clé de contact.
Rouge
Vers une borne dont l’alimentation est commandée
par la clé de contact (12 V CC).
Orange
Vers la borne du contacteur d’éclairage.
Sortie avant
Sortie pour haut-parleur
d’extrêmes graves
Noir (masse)
Fil de masse vers un élément en
métal apparent de la voiture.
Porte-fusible
Blanc Gris
Gauche Droite
Blanc/noir
Vert
Vert/noir
Gris/noir
Violet
Violet/noir
Haut-parleur
avant Haut-parleur
avant
Haut-parleur
d’extrêmes
graves
Bleu/blanc
Vers la borne de commande du relais
d’antenne motorisée (max. 300 mA, 12 V CC).
Ne connectez rien à ces câbles de liaison aux haut-parleurs.
Remarque:
Change le réglage initial de ces appareils.
(Reportez-vous aux mode d’emploi.)
Fig. 3
7Lors de l’utilisation d’un haut-parleur d’extrêmes graves sans amplificateur
extérieur (vendu séparément)
7Lorsque l’on ne connecte pas de câble de liaison au haut-parleur d’extrêmes graves

<FRANÇAIS>
Sortie d’alarme (ALARM OUTPUT) (Brun)
Lorsque l’alarme est excitée et qu’un signal sonore se fait entendre, le conducteur brun
véhicule une tension de sortie de +12 V qui peut être hachée. Le courant maximal qui peut
circuler dans ce conducteur ne doit pas dépasser de 500 mA; ce courant peut être utilisé pour
exciter une sirène, un avertisseur sonore ou les feux clignotants.
Câblage conseillé:
Relais 30 A (vendu séparément) requis pour le fonctionnement de la sirène, de l’avertisseur
sonore ou des clignotants.
• Reliez le conducteur Brun à une borne de la bobine du relais.
• Reliez l’autre borne de la bobine à la masse.
Pour les sirènes, avertisseurs sonores ou feux clignotants qui sont excités grâce à un
signal de +12 V
• Reliez le contact normalement ouvert à une source de +12 V protégée par un fusible.
Pour les sirènes, avertisseurs sonores ou feux clignotants qui sont excités par mise à la
masse
• Reliez le contact normalement ouvert à la masse.
Fig. 6
≠ +
30 A
Ce produit
Batterie de
véhicule
Fusible 30 A
(Vendu séparément)
Avertisseur sonore/sirène, etc.
CONTROL
Batterie
(BATT)
Masse
(GND)
Sortie
(OUTPUT)
Relais
(Vendu séparément)
Brun
Blanc/jaune (reportez-vous à “Contacteur de portière”.)
Contacteur sans mise à la masse (type positif):
Ford, Jaguar, Mercedes
Remarque:
• Grâce au menu d’alarme, réglez l’alarme DFS de façon qu’elle puisse reconnaître le signal positif de
déclenchement. Choisissez “DOOR-H :CLS” pour le système de portières.
Fig. 5
Pose de contacteurs neufs
Des contacteurs sont disponibles dans le commerce pour fournir un signal de déclenchement
d’alarme en cas d’ouverture du capot, du coffre, etc. Avant d’acheter un contacteur supplé-
mentaire, assurez-vous qu’il convient au système de portière dont le véhicule est équipé.
En matière d’installation et de câblage, respectez les instructions du fabricant.
Ce produit
Porte-fusibles
Plafonnier
Contacteur de portière d’origine
Blanc/jaune
Brun (reportez-vous à “Sortie d’alarme”.)
Contacteur de portière (DOOR SWITCH) (Blanc/jaune)
Contacteur avec mise à la masse:
GM, Chrysler, les véhicules japonais et la plupart des véhicules européens.
Remarque:
• Grâce au menu d’alarme, réglez l’alarme DFS de façon qu’elle puisse reconnaître le signal de masse
de déclenchement. Choisissez “DOOR-L :CLS” pour le système de portières.
Fig. 4
Ce produit
Porte-fusibles
Plafonnier
Contacteurs de portière d’origine
Blanc/jaune
Brun (reportez-vous à “Sortie d’alarme”.)
Installation de l’alarme DFS
Apposez les autocollants fournis sur la face intérieure des glaces avant.
Description
7Blanc/jaune (Contacteur de portière, DOOR SWITCH) .............................. (Fig. 4 et 5)
Ce conducteur permet de mettre en service l’alarme DFS dès qu’une portière est ouverte; il
peut être relié à un contacteur de portière de type positif (+) ou de type négatif (–).
7Brun (Sortie d’alarme, ALARM OUTPUT) .............................................................. (Fig. 6)
Ce conducteur peut véhiculer une tension hachée positive (+), capable d’exciter 2 relais de
500 mA (maximum). Utilisez ce conducteur pour exciter les relais qui commandent la
sirène, l’avertisseur sonore ou les feux clignotants.
Contacteurs de portières
Le signal d’excitation fourni par l’alarme DFS accepte les contacteurs de portière de type
positif ou de type négatif. Après raccordement, choisissez le type de système sur le menu de
l’alarme DFS.
La minuterie de retard à la sortie de l’alarme DFS ne commence à fonctionner qu’après la
fermeture de la dernière portière et l’extinction de l’éclairage de plafonnier.
ATTENTION
• Etant donné la complexité du câblage des véhicules actuels, nous vous conseil-
lons de faire installer l’alarme DFS UNIQUEMENT par un technicien agréé par
Pioneer.

2. Fixation de l’appareil au support pour le montage de la radio
installée par le constructeur. (Fig. 12) (Fig. 13)
Choisir la position selon laquelle les orifices de vis du sup-
port et ceux des vis de l’appareil principal sont alignés (cor-
respondent) et serrer les vis sur 2 endroits de chaque côté.
Utiliser l’une des vis de serrage (5 ×8 mm) ou les ves à tête
plate (5 ×9 mm), selon le forme des trous de vis sur le sup-
port.
Fig. 12
Fig. 13
11
13
12
10
Montage DIN arrière
Installation en utilisant les trous de vis sur les côtés de l’appareil
1. Enlever le cadre. (Fig. 11)
Fig. 11
Cadre
Introduisez la tige de déblocage dans l’orifice
du fond du cadre et tirez pour enlever le cadre.
(Pour remettre le cadre en place, diriger le
côté avec la rainure vers le bas.)
Vis
Tableau de bord ou console
Support pour le montage de la radio
<FRANÇAIS>Installation
Dépose de l’unite (Fig. 9) (Fig. 10)
Fig. 9
Fig. 10
5
6
Remarque:
• Avant de finaliser l’installation de l’appareil, con-
necter temporairement le câblage en s’assurant que
tout est correctement connecté et que l’appareil et
le système fonctionnement correctement.
• Pour obtenir une bonne installation, n’utiliser que
les pièces de l’appareil. L’utilisation de pièces non
prévues risque de causer un mauvais fonction-
nement.
• Consulter le concessionnaire le plus proche si l’in-
stallation nécessite le percement de trous ou toute
autre modification du véhicule.
• Installer l’appareil à un endroit où il ne gêne pas le
conducteur et où il ne peut pas blesser les pas-
sagers en cas d’arrêt brusque, comme pendant un
arrêt d’urgence.
• Le laser semiconducteur sera endommagé en cas
de réchauffement excessif. Dans ce cas ne pas
installer l’appareil dans un endroit présentant une
température élevée, tel que sortie de chauffage.
• L’angle de l’installation, ne doit pas dépasser 60°
par rapport à l’horizontale, faute de quoi l’unité ne
fournira pas ses performances optimales. (Fig. 7)
Fig. 7
60°
Montage DIN avant/arrière
Cet appareil peut être monté aisement, ou par le procédé de montage avant DIN (normal),
ou bien par le procédé de montage arrière DIN, en utilisant les orifices de vis sur les côtés
du châssis de l'appareil. Pour les détails veuillez vous référer aux méthodes de montage
illustrées qui suivent.
Montage DIN avant
Installation avec une bague en caoutchouc (Fig. 8)
182
53
Tableau de bord
Bague en caoutchouc
Vis
Support
Après avoir introduit le support dans le tableau de
bord, sélectíonnez les languettes appropriées en
fonction de l’épaisseur du matériau du tableau de
bord et courbez-les.
(Assurez le maintien aussi solidement que possible
en utilisant les languettes inférieures et supérieures.
Cela fait, courbez les languettes de 90 degrés.)
Cabre
Introduisez la tige de déblocage bans l’orifice
du fond du cabre et tirez pour enlever le
cadre.
(Pour remettre le cadre en place, diriger le
côté avec la rainure vers le bas.)
Insérer les clés d’extraction fournis dans l’u-
nite, comme indiqué dans la figure, jusqu’ à
ce qu’elles s’enclenchent en position. En
maintenant ces clés pressées contre les côtés
de l’unité, retirer l’unité.
Cabre
Fig. 8