Pitco Frialator Sg14R Users Manual L10 128 Rev 2
SG14R to the manual a909104e-12c0-67e4-6910-d01a0d199380
2015-02-06
: Pitco-Frialator Pitco-Frialator-Sg14R-Users-Manual-518770 pitco-frialator-sg14r-users-manual-518770 pitco-frialator pdf
Open the PDF directly: View PDF
.
Page Count: 2

Pitco Frialator, Inc., P.O. Box 501, Concord, NH 03302-0501 •1509 Route 3A, Bow NH 03304, USA
Phone (603) 225-6684 • Fax (603) 225-8472 • www.pitco.com
L10-128 Rev 03 (02/07)
Model SG14R
Tube Fired Gas Fryer
Project __________________________
Item number _____________________
Quantity _________________________
APPROVALS
CSA Certified
(AGA, CGA)
NSF Listed
MEA Approved
CE Certified
Australian Gas Assoc.
Certified (AuGA)
Patent Pending
Model SG14R
STANDARD ACCESSORIES
Choice of basket options
Two nickel-plated, oblong, wire mesh baskets
One nickel-plated, square, wire mesh basket
One nickel-plated tube rack
One drain extension
One drain line clean-out rod
Fryer cleaner sample
Rear gas connection
Manual gas shutoff
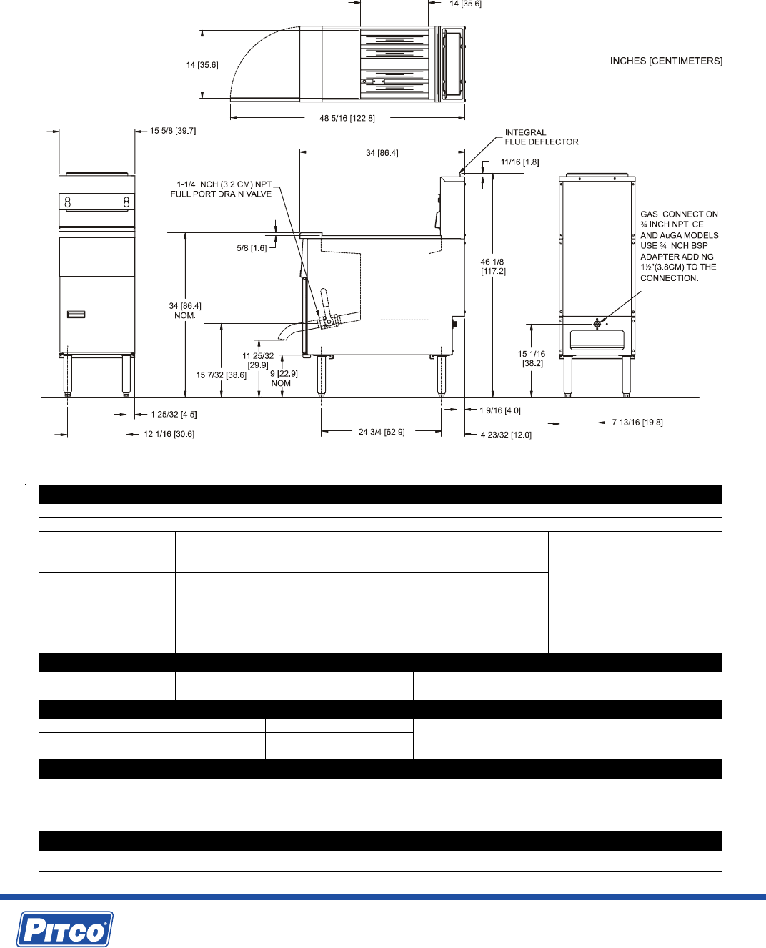
1 1/4” (3.2 cm) full port drain valve
Built-in integrated flue deflector
Removable basket hanger for easy cleaning
9” (22.9 cm) adjustable legs
Cabinet - stainless steel front, door, and sides
Tank - mild steel
AVAILABLE OPTIONS & ACCESSORIES
Stainless steel tank
Stainless steel back
9” (22.9 cm) adjustable casters
Triple baskets
Covers
STANDARD SPECIFICATIONS
CONSTRUCTION
Welded tank with an extra smooth peened finish ensures
easy cleaning.
Long-lasting, high-temperature alloy stainless steel heat
baffles are mounted in the heat exchanger tubes to provide
maximum heating and combustion efficiency.
Standing pilot light design provides a ready flame when heat
is required.
Stainless steel front, door, side, and splashback.
Heavy duty 3/16” (.48 cm) door hinge.
CONTROLS
Millivolt thermostat maintains selected temperature
automatically between 200°F (93°C) and 400°F (190°C-CE).
Integrated gas control valve acts as a manual and pilot valve,
automatic pilot valve, gas filter, pressure regulator, and
automatic main valve.
Gas control valve prevents gas flow to the main burner until
pilot is established and shuts off all gas flow automatically if
the pilot flame goes out.
Temperature limit switch safely shuts off all gas flow if the
fryer temperature exceeds the upper limit.
New Solstice burner/baffle design.***
-Increases cooking production.
-Lowers flue temperature.
-Improves working environment.
-Generates more production per BTU.
***Compared to previous models.
OPERATIONS
Front 1 1/4” (3.2 cm) full port drain for quick draining.
9” (22.9 cm) clearance allows for ease of cleaning.

Model SG14R - Tube Fired Gas Fryer
Pitco Frialator, Inc., P.O. Box 501, Concord, NH 03302-0501 •1509 Route 3A, Bow NH 03304, USA
Phone (603) 225-6684 • Fax (603) 225-8472 • www.pitco.com L10-128 Rev 03 (02/07) Printed in the USA
We reserve the right to change specifications without notice and without incurring any obligation for equipment previously or subsequently sold.
Model SG14R
GAS REQUIREMENTS
Gas Input Per Hour
122,000 BTUs / 36 kW (CE) / 129 megajoules (AuGA)
Gas Type*
Recommended Minimum
Store Manifold Pressure Burner Manifold Pressure
*For other gas types, contact
your Dealer/Distributor.
Natural Gas 7” W.C. / 17.4 mbars / 1.75 kPa 4” W.C. / 10 mbars / 1 kPa
L.P. Gas 13” W.C. / 32.4 mbars / 3.25 kPa 10” W.C. / 25 mbars / 2.5 kPa
Check plumbing/gas codes for
proper gas supply line sizing.
Clearance Information Fryer Front
Fryer Sides, Rear, Bottom to
any combustible material Fryer Flue Area
All Models 30” (76.2 cm) min. 6” (15.2 cm)
Do not Curb Mount
Do not block or restrict the flue
gasses from flowing into the
ventilation system.
ELECTRICAL OIL CAPACITY
Control Type Voltage / Phase / Frequency Amps
Millivolt Not required 0
40 - 50 pounds
(18 – 23 kg)
SHIPPING INFORMATION PERFORMANCE CHARACTERISTICS
Shipping Weight Shipping Cube Shipping H x W x L
198 lb
90 kg
19 ft.³
.54 m³
45 ¼ x 18 ¾ x 38 ½ in
114.9 x 47.6 x 97.8 cm
Cooks 110 lbs (50kg) of fries per hour
Frying Area 14 x 14 x 4 in
(35.6 x 35.6 x 10.2 cm)
SHORT FORM SPECIFICATION
Provide Pitco Model SG14R tube fired gas fryer. Fryer shall have an atmospheric burner system combined with four stainless steel
heat tubes utilizing high temperature alloy stainless steel baffles. Fryer shall have a deep cool zone; minimum 16% of total oil
capacity to trap burnt particles, crumbs and black specks. Fryer cooking area shall be 14” x 14” (35.6 cm x 35.6 cm) with a cooking
depth of 4” (10.2 cm). Heat transfer area shall be a minimum of 838 sq. inches (5,406 sq. cm). Provide accessories as follows:
TYPICAL APPLICATION
Frying a wide variety of foods in a limited amount of space. Frying that requires a high volume production rate.