Pro Lite DTR900-FCT DATA TRANSCEIVER User Manual DTR900 use manual
Pro-Lite, Inc. DATA TRANSCEIVER DTR900 use manual
Pro Lite >
REVISED USER MANUAL

NINGBO YOUWON TECHNOLOGY ELECTRONICS CO., LTD
ADDRESS :#928, XUEYUAN ROAD, LUGANG VILLAGE, GAOQIAO TOWN, NINGBO
TELEPHONE:0574 88046201 FAX:0574-88046202
(1)
DTR900-FC Transceiver Module Spec
一、 SUMMARY
DTR900S-FC transceiver module adopt the most advanced
Europe " bluetooth technology " at present , adopt the
high-performance single IC radio frequency produced in digital
scientific and technological , adopt high-efficient forward
correct error by CRC , work steady and reliable while being at
a high speed.Industry grades of standard, small and easy to
install. Suitable for traffic, meteorological phenomena ,
environmental data are gathered, intellectual district,
parking area vehicle managing, ammeter ,watch meter,gas meter
wireless read meter, ammeter ,watch meter,gas meter wireless
read meter etc.
二、 SPECIALITY
1.Mminiature power:transmit power 10mW---2W。
2. ISM frequency,no need licence,carry frequency
430-438MHz,also provide 315/868/915MHz。
3. High anti-interference ability: adopt high-efficient
forward correct error and check error by CRC,when the channel
signal error code rates on the10
-2 , can receive error code rates
of actual mistake 10-5-10-6 .
4. Transparent data transmission of half duplexing
communication.
5. The wireless communication of high speed and big data
buffering area.
6. It is flexible and convenient to set up:can set up RF
frequency ,series rate ,product ID.
7. It is far to transmit the distance:the distance of
reliably transmit>(BER=10-3/1200bps),300~2000m。
8. RS232/RS485/TTL UART interface。
9. Low consumption and sleep function :receiving current

NINGBO YOUWON TECHNOLOGY ELECTRONICS CO., LTD
ADDRESS :#928, XUEYUAN ROAD, LUGANG VILLAGE, GAOQIAO TOWN, NINGBO
TELEPHONE:0574 88046201 FAX:0574-88046202
(2)
<20mA , transmitting current<40mA,sleep current<20uA ( baud
rate=1200bps)。
10.Can use DC power battery,also can take the lithium
battery and to charge
12. High dependability, industry grades of standard, small ,
light
三、Technical speciality
Parameter value unit
Frequency 430--438 MHz
Modulate Type FSK
Modulate Frequency Partially ±30 KHz
Bandwidth 100 KHz
Output Power +10 dBm
Humorous - 60 dB
Output Impedance 50 Ω
Sensitivity -110 dbm
RF Rate 600-19200 bps
Series Rate 1200--19200 bps
receive <18(10mw) mA
current transmit <28 (10mw) mA
Temperature -40 -- +85 ℃
Shape Size 3.0 X 4.0 cm*cm
Communication Distance 300 (10mw) m

NINGBO YOUWON TECHNOLOGY ELECTRONICS CO., LTD
ADDRESS :#928, XUEYUAN ROAD, LUGANG VILLAGE, GAOQIAO TOWN, NINGBO
TELEPHONE:0574 88046201 FAX:0574-88046202
(3)
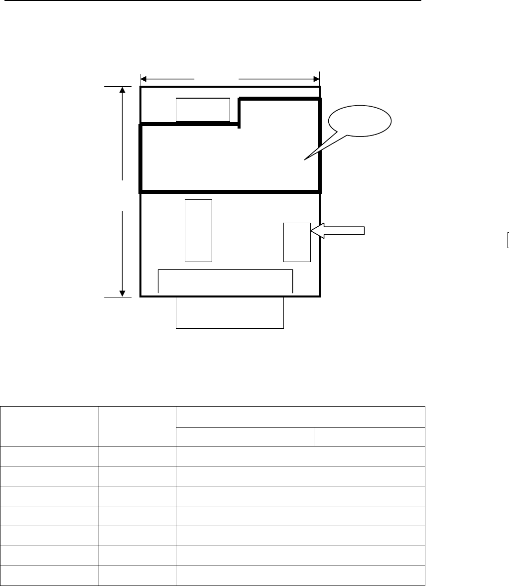
四、pin define
3cm
4cm
function
RS232 pin name TTL 485
1 VCC dc power input(+4—10V)
2 D-OUT data output /485 A
3 D-IN data input/485 B
5 GND GND
7 P_DOWN Sleep switch(high:on,low:off)
8 CTS current control
4,6,9 NC NO USE
R
antenna Shield
正
RS232
Write code hole

NINGBO YOUWON TECHNOLOGY ELECTRONICS CO., LTD
ADDRESS :#928, XUEYUAN ROAD, LUGANG VILLAGE, GAOQIAO TOWN, NINGBO
TELEPHONE:0574 88046201 FAX:0574-88046202
(4)
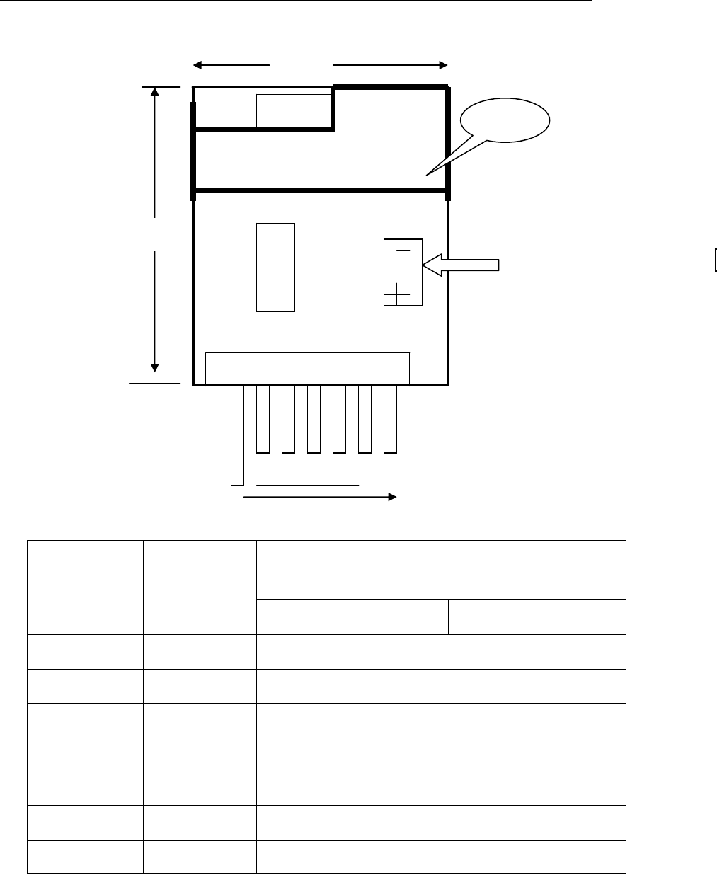
3cm
7
1 7
Function
Pin
Name
TTL 485
1 VCC Dc power input (+3——8V)
2 P-DOWN Sleep switch(high:on,low:off)
3 DIN-TX Data input/485 B
4 DOUT-RX Data output/485 A
5 CTS Current control
6 GND
7 WR No use
CRYSTAL
R
antenna shield
WriteCode hole
4cm

NINGBO YOUWON TECHNOLOGY ELECTRONICS CO., LTD
ADDRESS :#928, XUEYUAN ROAD, LUGANG VILLAGE, GAOQIAO TOWN, NINGBO
TELEPHONE:0574 88046201 FAX:0574-88046202
(5)
五:WRITE PROGRAM INTRODUCTION
■Write code of line connect computer series interface ,
write code of stitch end insert in the corresponding position
of the module, the direction is as the fourth picture shows.
■The module needn't add the power
■ Aattack the file of dtrwrite.exe ,open the
program,the following of the interface,
六:Application
■ ammeter ,watch meter,gas meter wireless read meter
■ fire control ,safe defend
■ traffic , meteorological phenomena , environmental
data are gathered
■ intellectual district, parking area vehicle managing
■ the controlling wirelessly of industrial automation
and intelligence instrument .
■ logistics trail , the warehouse is patrolled and
examined.
■oil field、gas field 、water conservancy 、 mine data
collect.

NINGBO YOUWON TECHNOLOGY ELECTRONICS CO., LTD
ADDRESS :#928, XUEYUAN ROAD, LUGANG VILLAGE, GAOQIAO TOWN, NINGBO
TELEPHONE:0574 88046201 FAX:0574-88046202
(6)
七,FCC STATEMENTS
1, Any changes or modifications not expressly approved
by the party responsible for compliance could void
the user’s authority to operate the equipment.
2, This device complies with Part 15 of the FCC Rules.
(1) This device may not cause harmful interference,
and (2) this device must accept any interference
received, including interference that may cause
undesired operation.
NOTE: This equipment has been tested and found to comply with the limits
for a Class B digital device, pursuant to part 15 of the FCC Rules. These
limits are designed to provide reasonable protection against harmful
interference in a residential installation. This equipment generates,
uses and can radiate radio frequency energy and, if not installed and used
in accordance with the instructions, may cause harmful interference to
radio communications. However, there is no guarantee that interference
will not occur in a particular installation. If this equipment does cause
harmful interference to radio or television reception, which can be
determined by turning the equipment off and on, the user is encouraged
to try to correct the interference by one or more of the following
measures:
—Reorient or relocate the receiving antenna.
—Increase the separation between the equipment and receiver. —Connect
the equipment into an outlet on a circuit different from that to which
the receiver is connected.
—Consult the dealer or an experienced radio/TV technician for help.
NOTE: THE MANUFACTURER IS NOT RESPONSIBLE FOR ANY RADIO OR TV INTERFERENCE
CAUSED BY UNAUTHORIZED MODIFICATIONS TO THIS EQUIPMENT. SUCH
MODIFICATIONS COULD VOID THE USER’S AUTHORITY TO OPERATE THE EQUIPMENT.
2009 年8月24 日