13370 1 Generac Qt06024Ansx Owners Manual Power Systems, Inc. User
13378 1 Generac Qt06024Anax Owners Manual 13378_1_Generac QT06024ANAX Owners Manual 13378_1_Generac QT06024ANAX Owners Manual pdf pumpproducts
13374 1 Generac Qt06024Avsx Owners Manual 13374_1_Generac QT06024AVSX Owners Manual 13374_1_Generac QT06024AVSX Owners Manual pdf pumpproducts
QT06024AVSX%09 to the manual e8858ccc-7e26-4a39-be47-015ed418b8f5
User Manual: Pump 13370 1 Generac Qt06024Ansx Owners Manual
Open the PDF directly: View PDF
.
Page Count: 76

This manual should remain with the unit.
2.4L
60kW Models
EPA Certified
Owner's Manual
Stationary Emergency Generator
Cover195 Rev. A 04/10 Part No. 0H7320
n NOT INTENDED FOR USE IN CRITICAL LIFE SUPPORT
APPLICATIONS.
ONLY QUALIFIED ELECTRICIANS OR CONTRACTORS
SHOULD ATTEMPT INSTALLATION! DEADLY EXHAUST
FUMES! OUTDOOR INSTALLATION ONLY!

SECTION PAGE
INTRODUCTION ........................................................... 1-1
Read this Manual Thoroughly .......................................................1-1
Operation and Maintenance ..........................................................1-1
How to Obtain Service .................................................................1-1
SAFETY RULES ............................................................ 1-2
GENERAL INFORMATION ............................................ 2-1
Identification Record ........................................................................2-1
Data Label ...................................................................................2-1
EQUIPMENT DESCRIPTION ........................................ 3-1
Equipment Description .....................................................................3-1
Engine Oil Recommendations ...........................................................3-1
Coolant Recommendations ..............................................................3-1
ENGINE PROTECTIVE DEVICES ................................. 4-1
Engine Protective Devices ................................................................4-1
High Coolant Temperature Sender ................................................4-1
Low Coolant Level Sensor ............................................................4-1
Low Oil Pressure Switch ..............................................................4-1
Overcrank Shutdown ....................................................................4-1
Overspeed Shutdown ...................................................................4-1
RPM Sensor Loss Shutdown........................................................4-1
DC Fuses .....................................................................................4-1
FUEL SYSTEM .............................................................. 5-1
Fuel Requirements .......................................................................5-1
Natural Gas Fuel System ..............................................................5-1
Propane Vapor Withdrawal Fuel System ........................................5-1
LP Liquid Fuel System ..................................................................5-1
SPECIFICATIONS ......................................................... 6-1
Stationary Emergency Generator ..................................................6-1
Engine .........................................................................................6-1
Cooling System............................................................................6-1
Fuel System .................................................................................6-1
Electrical System .........................................................................6-1
Weather and Maintenance Kits .....................................................6-2
Reconfiguring the Fuel System .........................................................6-2
Fuel System .................................................................................6-2
Control Panel ...............................................................................6-2
GENERAL INFORMATION ............................................ 7-1
Alternator AC Lead Connections .......................................................7-1
Four-lead, Single-phase Stator ......................................................7-1
Alternator Power Winding Connections .............................................7-1
3-phase Alternators ("Y" Configuration) ........................................7-1
3-phase Alternators ("Delta" Configuration)...................................7-2
CONTROL PANEL ......................................................... 8-1
Control Panel Interface .....................................................................8-1
Using the Auto/Off/Manual Switch ................................................8-1
Activate the Generator ......................................................................8-1
Display Interface Menus ...................................................................8-1
Activation Chart ...........................................................................8-2
Setting the Exercise Timer ................................................................8-3
Low Speed Exercise .....................................................................8-3
User Adjustable Settings ..................................................................8-3
Fuel Conversion ...............................................................................8-3
Operation ......................................................................................... 8-3
Automatic Transfer Operation .......................................................8-3
Sequence of Automatic Operation ................................................8-4
Crank Cycles and Overcrank Shutdown ........................................8-4
Auto Start ........................................................................................8-4
Manual Start ....................................................................................8-4
Alarm and Warning Messages ..........................................................8-4
Low Oil Pressure Shutdown Alarm ...............................................8-4
High Coolant Temperature Shutdown Alarm ..................................8-4
Overcrank Shutdown Alarm ..........................................................8-4
Overspeed Shutdown Alarm .........................................................8-4
RPM Sensor Failure Shutdown Alarm ...........................................8-4
Under-frequency Shutdown Alarm ................................................8-5
Low Battery Alarm .......................................................................8-5
Low Battery Warning....................................................................8-5
Low Coolant Level Alarm .............................................................8-5
Missing Cam Pulse Alarm ............................................................8-5
Missing Crank Pulse Alarm ..........................................................8-5
Low Fuel Pressure Warning ..........................................................8-5
Governor Sensor Fault Alarm ........................................................8-5
Wiring Error Alarm .......................................................................8-5
Undervoltage Alarm .....................................................................8-5
Overvoltage Alarm .......................................................................8-6
Internal Failure Shutdown Alarm ...................................................8-6
Canbus Alarm ..............................................................................8-6
Ignition Alarm ..............................................................................8-6
Maintenance Warning ...................................................................8-6
Alarm Cancel ...............................................................................8-6
Common Alarm Relay ......................................................................8-6
Maintenance Alerts ..........................................................................8-6
Menu System ...................................................................................8-7
OPERATION .................................................................. 9-1
Stationary Emergency Generator Control and Operation ....................9-1
Operating Unit with Manual Transfer Switch ......................................9-1
Engine Start-up and Transfer ........................................................9-1
Retransfer and Shutdown .............................................................9-1
Operating Unit with Automatic Transfer Switch .................................9-1
MAINTENANCE........................................................... 10-1
General Maintenance ......................................................................10-1
Check Engine Oil ........................................................................10-1
Changing Engine Oil ...................................................................10-1
Cooling Intake/Outlet ..................................................................10-1
Inspect Cooling System .............................................................10-1
Engine Coolant ...........................................................................10-2
Coolant Change .........................................................................10-2
Overload Protection for Engine DC Electrical System ..................10-2
Exercise System ........................................................................10-2
Perform Visual Inspection ..........................................................10-2
Inspect Exhaust System .............................................................10-2
Check Fan Belt ...........................................................................10-2
Inspect Engine Governor ............................................................10-2
Changing the Engine Air Filter .....................................................10-2
Spark Plugs ...............................................................................10-3
Battery Maintenance ..................................................................10-3
Battery Replacement ..................................................................10-3
Battery Fluid ...............................................................................10-3
Cleaning the Stationary Emergency Generator ............................10-3
SERVICE SCHEDULE ................................................. 11-1
TROUBLESHOOTING ................................................. 12-1
Troubleshooting Guide ....................................................................12-1
EMISSIONS WARRANTY ............................................ 13-1
NOTES
EXPLODED VIEWS & PARTS LISTS
WIRING DIAGRAMS & SCHEMATICS
Content048 Rev. A 05/10
Table of Contents

INTRODUCTION
Thank you for purchasing this model of the stationary emergency
generator product line.
Every effort was expended to make sure that the information and
instructions in this manual were both accurate and current at the
time the manual was written. However, the manufacturer reserves
the right to change, alter or otherwise improve this product(s) at
any time without prior notice.
READ THIS MANUAL THOROUGHLY
If any portion of this manual is not understood, contact the nearest
Service Dealer for starting, operating and servicing procedures.
Throughout this publication, and on tags and decals affixed to the
generator, DANGER, WARNING, CAUTION and NOTE blocks are
used to alert personnel to special instructions about a particular
service or operation that may be hazardous if performed incor-
rectly or carelessly. Observe them carefully. Their definitions are
as follows:
INDICATES A HAZARDOUS SITUATION OR ACTION WHICH, IF
NOT AVOIDED, WILL RESULT IN DEATH OR SERIOUS INJURY.
Indicates a hazardous situation or action which, if not
avoided, could result in death or serious injury.
Indicates a hazardous situation or action which, if not
avoided, could result in minor or moderate injury.
NOTE:
Notes contain additional information important to a procedure
and will be found within the regular text body of this manual.
These safety warnings cannot eliminate the hazards that they
indicate. Common sense and strict compliance with the special
instructions while performing the service are essential to prevent-
ing accidents.
Four commonly used safety symbols accompany the DANGER,
WARNING and CAUTION blocks. The type of information each
indicates is as follows:
n This symbol points out important safety information that,
if not followed, could endanger personal safety and/or
property of others.
This symbol points out potential explosion hazard.
This symbol points out potential fire hazard.
This symbol points out potential electrical shock hazard.
The operator is responsible for proper and safe use of the equip-
ment. The manufacturer strongly recommends that the operator
read this Owner's Manual and thoroughly understand all instruc-
tions before using this equipment. The manufacturer also strongly
recommends instructing other users to properly start and operate
the unit. This prepares them if they need to operate the equipment
in an emergency.
For safety reasons, the manufacturer recommends that this
equipment be installed, serviced and repaired by a Service
Dealer or other competent, qualified electrician or installation
technician who is familiar with applicable codes, standards and
regulations. The operator also must comply with all such codes,
standards and regulations.
OPERATION AND MAINTENANCE
It is the operator's responsibility to perform all safety checks, to
make sure that all maintenance for safe operation is performed
promptly, and to have the equipment checked periodically by a
Service Dealer. Normal maintenance service and replacement of
parts are the responsibility of the owner/operator and, as such,
are not considered defects in materials or workmanship within the
terms of the warranty. Individual operating habits and usage con-
tribute to the need for maintenance service.
Proper maintenance and care of the generator ensure a minimum
number of problems and keep operating expenses at a minimum.
See a Service Dealer for service aids and accessories.
Operating instructions presented in this manual assume that the
generator electric system has been installed by a Service Dealer or
other competent, qualified contractor. Installation of this equipment
is not a “do-it-yourself” project.
HOW TO OBTAIN SERVICE
When the generator requires servicing or repairs, simply contact
a Service Dealer for assistance. Service technicians are factory-
trained and are capable of handling all service needs.
When contacting a dealer about parts and service, always supply
the complete Model Number, Serial Number and Type Code (where
applicable) from the DATA LABEL that is affixed to the unit.
1-1
Safety004 Rev. F 05/10
Safety Instructions
n
SAVE THESE INSTRUCTIONS – The manufacturer suggests that these rules for safe operation be copied and posted in potential
hazard areas. Safety should be stressed to all operators, potential operators, and service and repair technicians for this
equipment.

SAFETY RULES
Study these SAFETY RULES carefully before installing, operating
or servicing this equipment. Become familiar with this Owner’s
Manual and with the unit. The generator can operate safely, effi-
ciently and reliably only if it is properly installed, operated and
maintained. Many accidents are caused by failing to follow simple
and fundamental rules or precautions.
The manufacturer cannot anticipate every possible circumstance
that might involve a hazard. The warnings in this manual, and on
tags and decals affixed to the unit are, therefore, not all inclusive.
If a procedure, work method or operating technique is used that
the manufacturer does not specifically recommend, ensure that it
is safe for others. Also make sure the procedure, work method or
operating technique utilized does not render the generator unsafe.
n
Despite the safe design of this generator,
operating this equipment imprudently, neglect-
ing its maintenance or being careless can cause
possible injury or death. Permit only respon-
sible and capable persons to install, operate or
maintain this equipment.
Potentially lethal voltages are generated by
these machines. Ensure all steps are taken to
render the machine safe before attempting to
work on the generator.
n
Parts of the generator are rotating and/or hot
during operation. Exercise care near running
generators.
GENERAL HAZARDS
For safety reasons, the manufacturer recommends that this •
equipment be installed, serviced and repaired by a Service
Dealer or other competent, qualified electrician or installation
technician who is familiar with applicable codes, standards
and regulations. The operator also must comply with all such
codes, standards and regulations.
Installation, operation, servicing and repair of this (and related) •
equipment must always comply with applicable codes, stan-
dards, laws and regulations. Adhere strictly to local, state and
national electrical and building codes. Comply with regulations
the Occupational Safety and Health Administration (OSHA) has
established. Also, ensure that the generator is installed, operat-
ed and serviced in accordance with the manufacturer’s instruc-
tions and recommendations. Following installation, do nothing
that might render the unit unsafe or in noncompliance with the
aforementioned codes, standards, laws and regulations.
The engine exhaust fumes contain carbon monoxide gas, which •
can be DEADLY. This dangerous gas, if breathed in sufficient
concentrations, can cause unconsciousness or even death. For
that reason, adequate ventilation must be provided. This should
be considered prior to installing the generator. The unit should
be positioned to direct exhaust gasses safely away from any
building where people, animals, etc., will not be harmed. Any
exhaust stacks that ship loose with the unit must be installed
properly per the manufacturer's instruction, and in strict compli-
ance with applicable codes and standards.
Keep hands, feet, clothing, etc., away from drive belts, fans, •
and other moving or hot parts. Never remove any drive belt or
fan guard while the unit is operating.
Adequate, unobstructed flow of cooling and ventilating air is •
critical in any room or building housing the generator to prevent
buildup of explosive gases and to ensure correct generator
operation. Do not alter the installation or permit even partial
blockage of ventilation provisions, as this can seriously affect
safe operation of the generator.
Keep the area around the generator clean and uncluttered. •
Remove any materials that could become hazardous.
When working on this equipment, remain alert at all times. •
Never work on the equipment when physically or mentally
fatigued.
Inspect the generator regularly, and promptly repair or replace •
all worn, damaged or defective parts using only factory-
approved parts.
Before performing any maintenance on the generator, discon-•
nect its battery cables to prevent accidental start-up. Disconnect
the cable from the battery post indicated by a NEGATIVE, NEG
or (–) first. Reconnect that cable last.
Never use the generator or any of its parts as a step. Stepping •
on the unit can stress and break parts, and may result in dan-
gerous operating conditions from leaking exhaust gases, fuel
leakage, oil leakage, etc.
ELECTRICAL HAZARDS
All stationary emergency generators covered by this manual •
produce dangerous electrical voltages and can cause fatal
electrical shock. Utility power delivers extremely high and dan-
gerous voltages to the transfer switch as well as the generator.
Avoid contact with bare wires, terminals, connections, etc.,
on the generator as well as the transfer switch, if applicable.
Ensure all appropriate covers, guards and barriers are in place
before operating the generator. If work must be done around
an operating unit, stand on an insulated, dry surface to reduce
shock hazard.
Do not handle any kind of electrical device while stand-•
ing in water, while barefoot, or while hands or feet are wet.
DANGEROUS ELECTRICAL SHOCK MAY RESULT.
1-2
Safety004 Rev. F 05/10
Safety Instructions

If personnel must stand on metal or concrete while installing, •
operating, servicing, adjusting or repairing this equipment,
place insulative mats over a dry wooden platform. Work on the
equipment only while standing on such insulative mats.
The National Electrical Code (NEC) requires the frame and •
external electrically conductive parts of the generator to be con-
nected to an approved earth ground. This grounding will help
prevent dangerous electrical shock that might be caused by a
ground fault condition in the generator or by static electricity.
Never disconnect the ground wire.
Wire gauge sizes of electrical wiring, cables and cord sets must •
be adequate to handle the maximum electrical current (ampac-
ity) to which they will be subjected.
Before installing or servicing this (and related) equipment, make •
sure that all power voltage supplies are positively turned off at
their source. Failure to do so will result in hazardous and pos-
sibly fatal electrical shock.
Connecting this unit to an electrical system normally supplied •
by an electric utility shall be by means of a transfer switch so as
to isolate the generator electric system from the electric utility
distribution system when the generator is operating. Failure to
isolate the two electric system power sources from each other
by such means will result in damage to the generator and may
also result in injury or death to utility power workers due to
backfeed of electrical energy.
Stationary emergency generators installed with an automatic •
transfer switch will crank and start automatically when normal
(utility) source voltage is removed or is below an acceptable
preset level. To prevent such automatic start-up and possible
injury to personnel, disable the generator’s automatic start cir-
cuit (battery cables, etc.) before working on or around the unit.
Then, place a “Do Not Operate” tag on the generator control
panel and on the transfer switch.
In case of accident caused by electric shock, immediately •
shut down the source of electrical power. If this is not pos-
sible, attempt to free the victim from the live conductor. AVOID
DIRECT CONTACT WITH THE VICTIM. Use a nonconducting
implement, such as a dry rope or board, to free the victim from
the live conductor. If the victim is unconscious, apply first aid
and get immediate medical help.
Never wear jewelry when working on this equipment. Jewelry •
can conduct electricity resulting in electric shock, or may get
caught in moving components causing injury.
FIRE HAZARDS
Keep a fire extinguisher near the generator at all times. Do NOT •
use any carbon tetra-chloride type extinguisher. Its fumes are
toxic, and the liquid can deteriorate wiring insulation. Keep the
extinguisher properly charged and be familiar with its use. If
there are any questions pertaining to fire extinguishers, consult
the local fire department.
EXPLOSION HAZARDS
Properly ventilate any room or building housing the generator to •
prevent build-up of explosive gas.
Do not smoke around the generator. Wipe up any fuel or oil •
spills immediately. Ensure that no combustible materials are left
in the generator compartment, or on or near the generator, as
FIRE or EXPLOSION may result. Keep the area surrounding the
generator clean and free from debris.
These generators may operate using one of several types •
of fuels. All fuel types are potentially FLAMMABLE and/or
EXPLOSIVE and should be handled with care. Comply with all
laws regulating the storage and handling of fuels. Inspect the
unit’s fuel system frequently and correct any leaks immediately.
Fuel supply lines must be properly installed, purged and leak
tested according to applicable fuel-gas codes before placing
this equipment into service.
Diesel fuels are highly FLAMMABLE. Gaseous fluids such •
as natural gas and liquid propane (LP) gas are extremely
EXPLOSIVE. Natural gas is lighter than air, and LP gas is heavier
than air; install leak detectors accordingly.
1-3
Safety004 Rev. F 05/10
Safety Instructions
CALIFORNIA PROPOSITION 65 WARNING
Engine exhaust and some of its constituents are known
to the State of California to cause cancer, birth defects
and other reproductive harm.
CALIFORNIA PROPOSITION 65 WARNING
This product contains or emits chemicals known to the
State of California to cause cancer, birth defects and
other reproductive harm.

IDENTIFICATION RECORD
DATA LABEL
Every generator set has a DATA LABEL that contains important
information pertinent to the generator. The data label, which can be
found attached to the generator’s lower connection box, lists the
unit’s serial number and its rated voltage, amps, wattage capacity,
phase, frequency, rpm, power factor, production date, etc.
NOTE:
For actual information related to this particular model, please
refer to the Manual Drawing Listing located at the end of this
manual, or to the data label affixed to the unit.
Stationary Emergency Generator Model and Serial
Number
This number is the key to numerous engineering and manufactur-
ing details pertaining to your unit. Always supply this number
when requesting service, ordering parts or seeking information.
2-1
Identy005 Rev. D 05/10
General Information
Data Label

EQUIPMENT DESCRIPTION
This equipment is a revolving field, alternating current Stationary
Emergency Generator. It is powered by a gaseous fueled engine
operating at 1800 rpm for 4-pole direct drive units, 3600 rpm for
2-pole direct drive units and 2300 - 3000 rpm for quiet drive gear
units. See the Specifications section for exact numbers. The unit
comes complete with a sound attenuated enclosure, internally
mounted muffler, control console, mainline circuit breaker, bat-
tery charger, and protective alarms as explained in the following
paragraph.
All AC connections, including the power leads from the alterna-
tor, 120 volt battery charger input and control connections to the
transfer switch are available in the main connection box.
The Stationary Emergency Generator incorporates the following
alternator features:
Rotor and Stator insulation class is rated as defined by NEMA •
MG1-32.6, NEMA MG1-1.66. The generator is self ventilated
and drip-proof constructed. Refer to the Specifications section
or the data label for the class ratings.
The voltage waveform deviation, total harmonic content of the •
AC waveform and telephone influence factor have been evalu-
ated and are acceptable according to NEMA MG1-32.
ENGINE OIL RECOMMENDATIONS
The unit has been filled with 5W-20 engine oil at the factory. Use
a high-quality detergent oil classified “For Service SJ or SH.”
Detergent oils keep the engine cleaner and reduce carbon deposits.
When changing the engine oil, be sure to use 5W-30 engine oil.
n
Any attempt to crank or start the engine before
it has been properly serviced with the recom-
mended oil may result in an engine failure.
NOTE:
If not already equipped, it is strongly recommended to use the
optional Cold Weather Start Kit for temperatures below 32° F.
The part number for the Cold Weather Start Kit can be found
in the Specifications section or by contacting an authorized
dealer. The oil grade for temperatures below 32° F is 5W-30
synthetic oil.
COOLANT RECOMMENDATIONS
Use a mixture of half low silicate ethylene glycol base anti-freeze
and deionized water. Cooling system capacity is listed in the
specifications. Use only deionized water and only low silicate
anti-freeze. If desired, add a high quality rust inhibitor to the rec-
ommended coolant mixture. When adding coolant, always add the
recommended 50-50 mixture.
n
Do not use any chromate base rust inhibitor
with ethylene glycol base anti-freeze or chro-
mium hydroxide (“green slime”) forms and will
cause overheating. Engines that have been
operated with a chromate base rust inhibitor
must be chemically cleaned before adding eth-
ylene glycol base anti-freeze. Using any high
silicate anti-freeze boosters or additives will
also cause overheating. The manufacturer also
recommends that any soluble oil inhibitor is
NOT used for this equipment.
n
Do not remove the radiator pressure cap while
the engine is hot or serious burns from boiling
liquid or steam could result.
n
Ethylene glycol base antifreeze is poisonous.
Do not use mouth to siphon coolant from the
radiator, recovery bottle or any container. Wash
hands thoroughly after handling. Never store
used antifreeze in an open container because
animals are attracted to the smell and taste of
antifreeze even though it is poisonous to them.
3-1
Equip001 Rev. G 05/10
Equipment Description

ENGINE PROTECTIVE DEVICES
The Stationary Emergency Generator may be required to operate
for long periods of time without an operator on hand to monitor
such engine conditions as coolant temperature, oil pressure or
rpm. For that reason, the engine has several devices designed to
protect it against potentially damaging conditions by automatically
shutting down the unit when the oil pressure is too low, the coolant
temperature is too high, the coolant level is too low, or the engine
is running too fast.
NOTE:
Engine protective switches and sensors are mentioned here for
the reader’s convenience. Also refer to the applicable control
panel manual for additional automatic engine shutdown infor-
mation.
HIGH COOLANT TEMPERATURE SENDER
An analog coolant temperture sender, located in the engine's
cooling system will cause an engine shutdown if the temperature
should exceed approximately 125° C (257° F). The generator will
automatically restart once the temperature has returned to a safe
operating level.
LOW COOLANT LEVEL SENSOR
To prevent overheating, the engine has a low coolant level sensor.
If the level of engine coolant drops below the level of the low cool-
ant level sensor, the engine automatically shuts down.
LOW OIL PRESSURE SWITCH
This switch has normally closed contacts that are held open by
engine oil pressure during cranking and operating. Should oil pres-
sure drop below the 8 psi range, switch contacts close, and the
engine shuts down. The unit should not be restarted until oil is
added, and the AUTO/OFF/MANUAL switch must be turned to OFF
and then back to AUTO.
OVERCRANK SHUTDOWN
After a prespecified duration of cranking, this function ends the
cranking if the engine has failed to start. The overcrank message
will turn ON. Turn OFF the AUTO/OFF/MANUAL switch, then turn
switch back to AUTO to reset the generator control board.
NOTE:
If the fault is not corrected, the overcrank feature will continue
to activate.
Approximate Crank Cycle Times
15 seconds ON•
7 seconds OFF•
7 seconds ON•
7 seconds OFF•
Repeat for 45 seconds•
Approximately 90 seconds total.•
OVERSPEED SHUTDOWN
A speed circuit controls engine cranking, start-up, operation and
shutdown. Engine speed signals are delivered to the circuit board
whenever the unit is running. Should the engine overspeed above
a safe, preset value, the circuit board initiates an automatic engine
shutdown. Contact the nearest Authorized Dealer if this failure
occurs.
RPM SENSOR LOSS SHUTDOWN
If the speed signal to the control panel is lost, engine shutdown
will occur.
DC FUSES
A fuse (7.5 amp) is located on the control panel. It protects the
panel components from damaging overload. Always remove this
fuse before commencing work on the generator. The unit will not
start or crank if the fuse is blown.
A fuse (25 amp) is located in the engine wire harness adjacent
to the DC alternator. It is used to prevent circuit failure due to DC
alternator falure. It will also protect the system in the event of a
wiring short-dircuit. If this fuse is blown, the generator will not
operate. Replace these fuses with the same size, type, and rating.
4-1
EngProt003 Rev. B 05/10
Engine Protective Devices

FUEL SYSTEM
FUEL REQUIREMENTS
The Stationary Emergency Generator may be equipped with one of
the following fuel systems:
• Natural gas fuel system
• Propane vapor (LPV) fuel system
Recommended fuels should have a Btu content of at least 1,000
Btu's per cubic foot for natural gas; or at least 2,520 Btu's per
cubic foot for LP gas. Ask the fuel supplier for the Btu content of
the fuel.
NOTE:
The fuel consumption requirements are identified in the
Specifications section of the Owner's Manual. Refer to the
Installation Manual if assistance is required for the sizing of
the pipe diameter for the generator. Any piping used to connect
the generator to the fuel supply should be of adequate size to
achieve the 100% load fuel consumption requirements identi-
fied in the Specifications section regardless of actual load.
NOTE:
The recommended fuel pressure is identified in the Specifications
section this manual.
NOTE:
It is the responsibility of the installer to make sure that only
the correct recommended fuel is supplied to the generator fuel
system. Thereafter, the owner/operator must make certain that
only the proper fuel is supplied.
NATURAL GAS FUEL SYSTEM
Natural gas is supplied in its vapor state. In most cases, the gas
distribution company provides piping from the main gas distribu-
tion line to the standby generator site. The following information
applies to natural gas fuel systems.
• Gas pressure in a building is usually regulated by national, state
and local codes.
• To reduce gas pressure to a safe level before the gas enters a
building, a primary regulator is needed. The natural gas supplier
may or may not supply such a regulator.
• It is the responsibility of the gas supplier to make sure sufficient
gas pressure is available to operate the primary regulator.
• Gas pressure at the inlet to the fuel shutoff solenoid must never
exceed approximately 14 inches water column (0.5 psi).
PROPANE VAPOR WITHDRAWAL FUEL SYSTEM
This type of system utilizes the vapors formed above the liquid
fuel in the supply tank. Approximately 10 to 20 percent of the tank
capacity is needed for fuel expansion from the liquid to the vapor
state. The vapor withdrawal system is generally best suited for
smaller engines that require less fuel. The installer should be aware
of the following:
• When ambient temperatures are low and engine fuel consump-
tion is high, the vapor withdrawal system may not function
efficiently.
• Ambient temperatures around the supply tank must be high
enough to sustain adequate vaporization, or the system will not
deliver the needed fuel volume.
• In addition to the cooling effects of ambient air, the vaporization
process itself provides an additional cooling effect.
5-1
FuelSys001 Rev. F 04/11
Fuel System

SPECIFICATIONS
GENERATOR
Type......................................................................Synchronous
Rotor Insulation .............................................................Class H
Stator Insulation ............................................................Class H
Telephone Interference Factor (TIF) .................................. < 50
Alternator Output Leads 3-phase ..................................... 4-wire
Bearings ..................................................................Sealed Ball
Coupling ................................................................Flexible Disc
Load Capacity (Standby Rating) .....................................60kW*
* NOTE: Generator rating and performance in accordance with ISO8528-5, BS5514, SAE
J1349, ISO3046 and DIN 6271 Standards. KW rating is based on LPG fuel and may derate
with natural gas.
Excitation System ............................................................Direct
Generator Output Voltage/kW - 60 Hz kW Amp CB Size
120/240V, 1-phase, 1.0 pf 60 250 300
120/208V, 3-phase, 0.8 pf 60 208 250
120/240V, 3-phase, 0.8 pf 60 180 200
277/480V, 3-phase, 0.8 pf 60 90 100
Generator Locked Rotor KVA Available @ Voltage Dip of 35%
Single-phase or 208, 3-phase (60kW) ...................... 120 KVA
480V, 3-phase (60kW) .............................................. 141 KVA
ENGINE
Make ........................................................................... Generac
Model .............................................................................In Line
Cylinders and Arrangement .....................................................4
Displacement ............................................................... 2.4 Liter
Bore..............................................................................3.41 in.
Stroke ...........................................................................3.94 in.
Compression Ratio....................................................... 9.5-to-1
Air Intake System ........................... Turbo Charged/After Cooled
Valve Seats ................................................................ Hardened
Lifter Type .................................................................. Hydraulic
Spark Plug Gap ........................................0.17mm (0.028 inch)
Engine Parameters
Rated Synchronous RPM .......................................60 Hz, 3600
Exhaust System
Exhaust Flow at Rated Output 60 Hz (60kW) ................494 cfm
Exhaust Temp. at Rated Output (60kW) .........................1050° F
Combustion Air Requirements (Natural Gas)
Flow at rated power, 60 Hz (60kW) ..............................180 cfm
Governor
Type...........................................................................Electronic
Frequency Regulation .............................................Isochronous
Steady State Regulation ..............................................± 0.25%
Engine Lubrication System
Type of Oil Pump ...............................................................Gear
Oil Filter ......................................... Full Flow Spin-on, Cartridge
Crankcase Oil Capacity ....5.25 U.S. qts. (including filter capacity)
COOLING SYSTEM
Type............................................. Pressurized Closed Recovery
Water Pump ............................................................. Belt Driven
Fan Speed ..................................................................2050 rpm
Fan Diameter ..............................................................22 inches
Fan Mode ......................................................................... Puller
Air Flow (inlet air including alternator and
combustion air) ................................................. 3280 ft3/min.
Coolant Capacity ................................................. (2.5 U.S. gal.)
Heat Rejection to Coolant (60kW) .......................270,000 Btu/h
Maximum Operating Air Temp. on Radiator ......... 60° C (150° F)
Maximum Ambient Temperature ......................... 50° C (140° F)
FUEL SYSTEM
Type of Fuel ....................................Natural Gas, Propane Vapor
Carburetor............................................................... Down Draft
Secondary Fuel Regulator............................................ Standard
Fuel Shut-off Solenoid ................................................. Standard
Operating Fuel Pressure .................5 in. - 14 in. Water Column
Fuel Consumption - ft3/hr (Natural Gas/LPV)
Exercise 25% 50% 75% 100%
Cycle Load Load Load Load
60kW 123/49.3 267/101 483/183 672/255 862/327
ELECTRICAL SYSTEM
Battery Charge Alternator ......................................12V, 30 Amp
Static Battery Charger ..................................................2.5 Amp
Recommended Battery .................................Group 26, 525CCA
System Voltage ............................................................ 12 Volts
Voltage Regulator
Type...........................................................................Electronic
Sensing ................................................................ Single-phase
Regulation ........................................................................± 1%
Features ......................................... Adjustable Voltage and Gain
Power Adjustment for Ambient Conditions
Temperature Deration
3% for every 10° C above °C (60kW) ..................................25
1.65% for every 10° above °F (60kW) .................................77
Altitude Deration
1% for every 100 m above m (60kW) ...............................915
3% for every 1000 ft. above ft. (60kW) ...........................3000
Controller ................................................................. Nexus
6-1
GenSpec088 Rev. A 05/10
Specifications

WEATHER AND MAINTENANCE KITS
To keep the generator running at its peak, the following kits are
offered:
Cold Weather Kit•
~ Recommended for climates with temperatures below 32° F.
Extreme Cold Weather Kit•
~ Recommended Block Heater Kit for protection in tempera-
tures below 32° F.
Scheduled Maintenance Kit•
~ Kit includes the recommended parts to maintain the genera-
tor. Refer to the Service Schedule for regular maintenance
intervals.
For additional information, or to order any of these kits, please
contact an Authorized Service Dealer or Customer Service
Representative.
6-2
GenSpec088 Rev. A 05/10
Specifications

ALTERNATOR AC LEAD
CONNECTIONS
The electrical wires in the unit’s AC connection (lower) panel
should be installed according to the number of leads and the
voltage/phase required for the application. The voltage and phase
are described on the generator data label. The number of lead
wires can be identified using the Specifications section and the
power output rating on the generator data label. For example, if
the generator produces 130kW, 277/480 Volt, 3-phase power, the
generator has 12 alternator output leads. Figure 7.3 describes the
stator power winding connection for the generator.
FOUR-LEAD, SINGLE-PHASE STATOR
Four-lead alternators (see Figure 7.1) are designed to supply elec-
trical loads with voltage code “A” (240V, 1-phase, 60 Hz). Electrical
power is produced in the stator power windings. These windings
were connected at the factory to the main circuit breaker as shown
in Figure 7.1.
The rated voltage between each circuit breaker terminal is 240V.
The rated voltage between each circuit breaker terminal and the
neutral point 00 is 120V.
Figure 7.1 — Four-lead, Single-phase Stator
ALTERNATOR POWER WINDING
CONNECTIONS
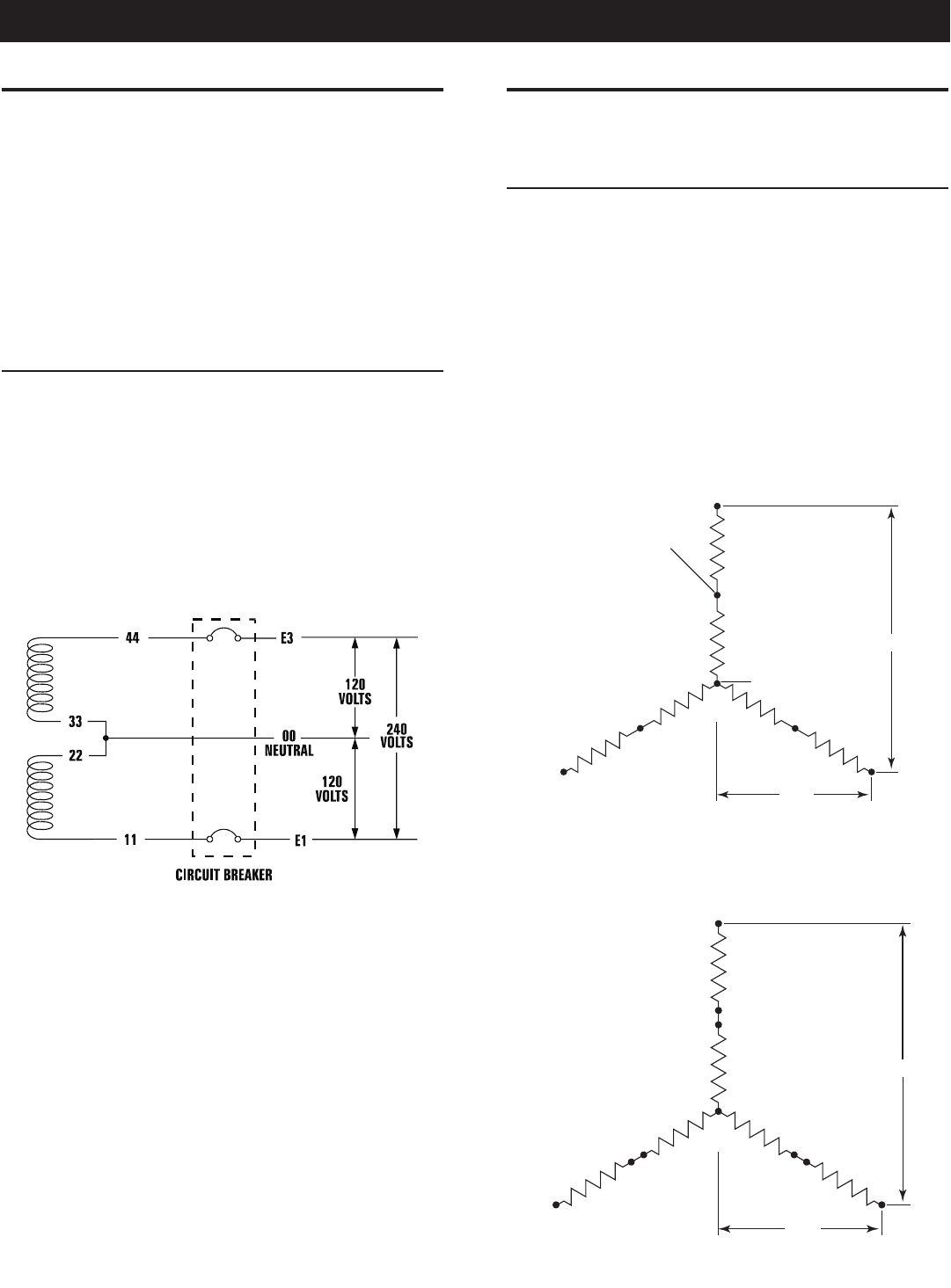
3-PHASE ALTERNATORS ("Y" CONFIGURATION)
The Stationary Emergency Generator is designed to supply
3-phase electrical loads. Electric power is produced in the alterna-
tor power windings. These windings were connected at the factory
to the main circuit breaker with a “Y” configuration as shown in
Figures 7.2 through 7.6.
The rated voltage between circuit breaker terminals E1-E2, E1-E3
and E2-E3 is 480V, 208V or 600V depending on the model.
The rated voltage between each circuit breaker terminal and the
neutral point 00 is 277V, 120V, or 346V depending on the model.
Figure 7.2 — Stator Power Winding
Connections - 3-phase, 277/480V (6 Lead)
E1
S1
S6
S5
S4
S2
E2
S3
E3 L - N
L - L
INTERNAL
CONNECTIONS
00 (NEUTRAL)
Figure 7.3 — Stator Power Winding
Connections - 3-phase, 277/480V (12 Lead)
E1
S1
S4
S7
S12
S11
S10
S8
S5
S2
E2
S9
S6
S3
E3 L - N
L - L
7-1
ACConn007 Rev. B 05/10
General Information

Figure 7.4 — Stator Power Winding
Connections - 3-phase, 120/208V (6 Lead)
E3 E2
00 (NEUTRAL)
INTERNAL CONNECTIONS E1
L-L
L-N
S1 S1
S4 S4
S6
S6
S3
S3
S5
S5 S2
S2
Figure 7.5 — Stator Power Winding
Connections - 3-phase, 120/208V (12 Lead)
E3 E2
E1
L-L
L-N
S7 S1
S10 S4
S12
S6
S9
S3
S5
S11 S2
S8
Figure 7.6 — Stator Power Winding
Connections - 3-phase, 346/600V (6 Lead)
E1
S1
S6
S5
S4
S2
E2
S3
E3 L - N
L - L
INTERNAL
CONNECTIONS
00 (NEUTRAL)
3-PHASE ALTERNATORS ("DELTA" CONFIGURATION)
The Stationary Emergency Generator is designed to supply
3-phase electrical loads. Electric power is produced in the alterna-
tor power windings. These windings were connected at the factory
to the main circuit breaker with a “Delta” configuration as shown
in Figures 7.7 and 7.8.
The rated voltage between circuit breaker terminals E1-E2, E1-E3
and E2-E3 is 240V.
The rated voltage between E1 or E3 and the neutral point 00 is
120V.
Figure 7.7 — Stator Power Winding
Connections - 3-phase, 120/240V (6 Lead)
E2
E1 E3
INTERNAL
CONNECTIONS
S1
S6
S5
S4
S2
S3
L - N
L - L
00 (NEUTRAL)
Figure 7.8 — Stator Power Winding
Connections - 3-phase, 120/240V (12 Lead)
E2
E1 E3
S1
S12
S11
S8 S6
S5 S9
S10
S2
S3
L - N
L - L
00 (NEUTRAL)
7-2
ACConn007 Rev. B 05/10
General Information

CONTROL PANEL INTERFACE
USING THE AUTO/OFF/MANUAL SWITCH
With the switch set to AUTO, the engine may
crank and start at any time without warning.
Such automatic starting occurs when utility
power source voltage drops below a preset
level or during the normal exercise cycle. To
prevent possible injury that might be caused
by such sudden starts, always set the switch
to OFF and remove the fuse before work-
ing on or around the generator or transfer
switch. Then, place a “DO NOT OPERATE”
tag on the generator panel and on the trans-
fer switch.
1. “AUTO” Position – Selecting this switch activates fully auto-
matic system operation. It also allows the unit to automati-
cally start and exercise the engine every seven days with the
setting of the exercise timer (see the Setting the Exercise
Timer section).
2. “OFF” Position – This switch position shuts down the engine.
This position also prevents automatic operation.
3. “MANUAL” Position – Set the switch to MANUAL to crank
and start the engine. Transfer to standby power will not occur
unless there is a utility failure.
ACTIVATE THE GENERATOR
When battery power is applied to the generator during the instal-
lation process, the controller will turn ON and the LCD screen will
illuminate. However, the generator still needs to be activated before
it will automatically run in the event of a power outage.
Activating the generator is a simple one time process that is guided
by the controller screen prompts. Once the product is activated,
the controller screen will not prompt you again, even if you discon-
nect the generator battery.
To obtain the activation code, record the generator serial number
and log onto www.activategen.com or call 1-888-9ACTIVATE and
follow the steps to retrieve the activation code.
After obtaining your activation code, please complete the following
steps at the generator’s control panel in the Activation Chart on the
following page.
NOTE:
The generator will only run in manual until the passcode has
been entered.
Upon power up, this controller will go through a system self test
which will check for the presence of utility voltage on the DC
circuits. This is done to prevent damage if the installer mistakenly
connects AC utility power sense wires into the DC terminal block.
If utility voltage is detected, the controller will display a warning
message and lock out the generator, preventing damage to the
controller. Power to the controller must be removed to clear this
warning.
Utility voltage must be turned on and present at the N1 and N2
terminals inside the generator control panel for this test to be
performed and pass.
NOTE:
DAMAGE CAUSED BY MISWIRING OF THE INTERCONNECT
WIRES IS NOT WARRANTABLE!
This test will be performed each time the controller is powered
up.
Next, the user must enter the minimum settings to operate. These
settings are current date and time and exercise day and time. The
maintenance intervals will be initialized (i.e. started) the first time
the clock is set. If the clock is never set at power up, the mainte-
nance intervals will be reset every time power is applied.
If a subsequent power loss (loss of battery power) occurs the
Installation assistant will operate upon power restoration. The self
test routine will be run and then the customer will be required to
re-enter the time and date, as this is not retained during a power
loss. The unit will not require re-activation.
DISPLAY INTERFACE MENUS
The LCD display is organized as detailed below:
• The “Home” page, this page is the default page which will be
displayed if no keys are pressed for 30 seconds. This page
normally shows the current Status message and the current
date and time. The highest priority active Alarm and/or Warning
will be automatically posted on this page as well as flashing
the backlight when such an event is detected. In the case of
multiple Alarms or Warnings, only the first message will be
displayed. To clear an Alarm or Warning, see the Protection
Systems section - Clear Alarm.
• The display backlight is normally off. If the user presses any
key, the backlight will come on automatically and remain on for
30 seconds after the last key was pressed.
• The “Main Menu” page will allow the user to navigate to all other
pages or sub-menus by using the Left/Right and Enter keys.
This page can be accessed at any time with several presses of
the dedicated Escape key. Each press of the Escape key takes
you back to the previous menu until the main menu is reached.
This page displays the following options: HISTORY; STATUS;
EDIT; AND DEBUG. (See the Appendix - "Menu System".)
8-1
CntrlNexusus001 Rev. D 04/11
Control Panel

8-2
CntrlNexus001 Rev. D 04/11
Control Panel
ACTIVATION CHART
CHOOSE LANGUAGE TROUBLESHOOTING
Display Reads: Use ARROW keys to scroll to desired lan-
guage. Press ENTER to select.
If the wrong language is chosen, it can be
changed later using the “edit” menu.
Display Reads: Press ENTER to begin the activation pro-
cess.
If ESCAPE is pressed instead of ENTER,
your generator will only run in manual mode
(for test purposes) and NOT ACTIVATED will
be displayed. You will need to remove the
generator control panel fuse AND disconnect
the T1, N1 and N2 connector in the external
connection box (if equipped); or disconnect
utility input (main breaker) to the transfer
switch for 3-5 seconds and reconnect, then
begin with Step 1.
Display Reads: If you do not have your activation code,
go to www.activategen.com or call
1-888-9ACTIVATE (922-8482).
If you already have your activation code,
wait 3-5 seconds for the next display.
ENTER ACTIVATION CODE (Passcode) TROUBLESHOOTING
Display Reads: Use ARROW keys to scroll and find the first
number of your Activation Code.
Press ENTER to select.
Repeat this step until all digits have been
entered.
Use ESCAPE to correct previous digits.
Display Reads: Activation is complete when all digits are
entered above and your screen shows this
display.
Follow the controller prompts to continue
setting the time function. Refer to your
Owner’s Manual with questions.
What happens if “Wrong Passcode Try
Again” appears?
Re-enter the activation code. If a second
attempt is unsuccessful, check the number
against the code given on activategen.com.
If it is correct and the generator will not
accept it, contact 1-888-9ACTIVATE (922-
8482).
“SELECT HOUR (0-23)”
“- +”6
Escape Enter
Serial 123456789
Passcode XXXXX +/-
Escape Enter
To Activate go to
www.activategen.com
Escape Enter
Activate me (ENT) or
ESC to run in manual
Escape Enter
Language
- English +
Escape Enter

INSTALLATION ASSISTANT
Interconnect System Self Test Feature (follow the on-screen
prompts).
Upon power up, this controller will go through a system self test
which will check for the presence of utility voltage on the DC
circuits. This is done to prevent damage if the installer mistakenly
connects AC utility power sense wires into the DC terminal block.
If utility voltage is detected, the controller will display a warning
message and lock out the generator, preventing damage to the
controller. Power to the controller must be removed to clear this
warning.
Utility voltage must be turned on and present at the N1 and N2
terminals inside the generator control panel for this test to be
performed and pass.
NOTE:
DAMAGE CAUSED BY MISWIRING OF THE INTERCONNECT
WIRES IS NOT WARRANTABLE!
This test will be performed each time the controller is powered
up.
Upon first power up of the generator, the display interface will
begin an installation assistant. The assistant will prompt the user
to set the minimum settings to operate. These settings are simply:
Current Date/Time and Exercise Day/Time. The maintenance inter-
vals will be initialized when the exercise time is entered.
The exercise settings can be changed at any time via the "EDIT"
menu (see Appendix, "Menu System").
If the 12 volt battery is disconnected or the fuse removed, the
Installation Assistant will operate upon power restoration. The
only difference is the display will only prompt the customer for the
current Time and Date.
IF THE INSTALLER TESTS THE GENERATOR PRIOR TO
INSTALLATION, PRESS THE “ENTER” KEY TO AVOID SETTING
UP THE EXERCISE TIME. THIS WILL ENSURE THAT WHEN
THE CUSTOMER POWERS UP THE UNIT, HE WILL STILL BE
PROMPTED TO ENTER AN EXERCISE TIME.
SETTING THE EXERCISE TIMER
This generator is equipped with an exercise timer. Once it is set,
the generator will start and exercise every seven days, on the day
of the week and at the time of day specified. During this exercise
period, the unit runs for approximately 12 minutes and then shuts
down. Transfer of loads to the generator output does not occur
during the exercise cycle unless utility power is lost.
LOW SPEED EXERCISE
The standard start sequence will be initiated.
• All 1800 rpm units will exercise at 1400 RPM
• All 3600 rpm units will exercise at 1800 RPM
If utility is lost during exercise the controller will do the following:
• Wait for the “line interrupt period” for utility to return. If utility
returns within the “line interrupt period”, continue to exercise
at low RPM.
• If utility is still lost after the “line interrupt period”, run the engine
up to normal RPM and transfer the load. At this time the con-
troller will exit the exercise routine and assume full automatic
operation.
USER ADJUSTABLE SETTINGS
Setting Factory
Default
Minimum
Setting
Maximum
Setting Increment
Exercise
time 2 pm 00:00 (12 am) 23:59
(11:59 pm) 1 min
Exercise
day Wed Sun Sat 1 day
Current
Time 12 am 00:00 (12 am) 23:59
(11:59 pm) 1 min
Current
Day Sun Sun Sat 1 day
Current
Month Jan Jan Dec 1 month
Current
Year 2008 2008 2100 1 year
Language English French Spanish N/A
Contrast 80% 0% 100% 1%
FUEL CONVERSION
For fuel conversion steps, refer to the GenSpec section,
RECONFIGURING THE FUEL SYSTEM.
OPERATION
This system is intended to supply standby power in the event of a
utility failure. The control system will monitor the utility voltage to
determine if stand-by power is required. Should the utility voltage
fail, the generator will start and run normally, detaching from the
utility and supplying the customer load from the generator. When
utility power returns, the controller will re-transfer the customer
load back to utility and shut down the generator.
AUTOMATIC TRANSFER OPERATION
To select automatic operation, do the following:
1. Make sure the transfer switch main contacts are set to their
UTILITY position, i.e., loads connected to the utility power
source.
2. Be sure that normal UTILITY power source voltage is avail-
able to transfer switch terminal lugs N1 and N2 (Refer to the
Electrical Data section).
3. Set the generator’s AUTO/OFF/MANUAL switch to AUTO.
4. Set the generator’s main circuit breaker to its ON (or CLOSED)
position.
With the preceding steps complete, the generator will start auto-
matically when utility source voltage drops below a preset level.
After the unit starts, loads are transferred to the standby power
source. Refer to the Sequence of Automatic Operation section.
8-3
CntrlNexus001 Rev. D 04/11
Control Panel

SEQUENCE OF AUTOMATIC OPERATION
Initial Conditions: Generator in Auto ready to run, load being sup-
plied by the Utility Source through the transfer switch.
1. When the utility voltage fails (falls below 60% of nominal), a
10-30 second (programmable) “line interrupt” delay timer is
started. The factory set time delay is 10 seconds. If at the
end of the line interrupt time the utility voltage is above 60%
the engine will not crank. If the utility voltage is still below
the 60% of nominal at the end of the line interrupt time, the
unit will crank and start. If the unit cranks for more than 10
seconds and the utility voltage rises above 80% of nominal
(programmed pickup voltage) and the unit has not started, the
crank cycle will abort.
2. As soon as the unit starts a 5 second “warm-up” timer is initi-
ated. When the warm-up timer expires the control will transfer
the load to the generator (through the RTS switch) if the utility
voltage is less than 80% of nominal. If the utility voltage is
greater than the 80% of nominal at the end of the warm-up
time the load will not be transferred to the generator and a one
minute low-speed cool down period will start. At the end of
the one minute cool down period the generator will stop.
3. Once the unit is running and the switch has transferred the
load to the generator the unit will monitor utility voltage.
When utility voltage returns (above the programmable pickup
voltage, normally 80% of nominal), a 15 second “Return to
Utility” timer will start. At the end of the return to utility time,
if the utility voltage is still above the pickup voltage, the unit
will transfer the load back to the utility source and run the unit
through a one minute cool down period. When the cool down
period is over the unit will shut down and be ready for the next
outage.
4. If during the cool down period utility voltage should fall below
60% of nominal the 5 second warm-up timer is initiated and
the unit will transfer the load back to the generator and con-
tinue to monitor the utility.
CRANK CYCLES AND OVERCRANK SHUTDOWN
If the unit fails to start during a cranking period it will display the
Overcrank Shutdown Alarm. The system will control the cranking
cycles as follows:
The first crank cycle is a 16 second crank time followed by a 7
second rest. The next 5 cycles will be 7 seconds of cranking time
each followed by a 7 second rest time.
If the unit fails to start by the end of the 6 crank/rest cycles
the Overcrank Shutdown Alarm will display and the unit will not
attempt to crank until the alarm is reset.
AUTO START
This unit is designed to automatically start in the event of a util-
ity failure or brown out condition. Brown out is defined as utility
voltage less than 60% nominal, while utility is considered good
when it is restored to at least the pickup value, 80% of nominal.
These levels are fixed. The “Line Interrupt period” is an adjustable
parameter by the dealer. If 2-wire start mode is activated, the unit
will start when 2-wire start is active.
MANUAL START
Allows the user to start and run the generator manually.
Transfer of the load to the generator will occur if utility is lost while
the unit is running in the manual mode (only if activated).
ALARM AND WARNING MESSAGES
Alarms are defined as “Latching” which means they must be
cleared before the alarm message on the screen will clear. They
can be of type “Shutdown” or not and are logged in the alarm log.
Alarms are all annunciated on the display).
Warnings are “Non Latching” meaning the message automati-
cally clears when the warning condition goes away. Warnings can
not be of type “Shutdown” but they are logged in the alarm log.
Warnings are all annunciated on the display.
LOW OIL PRESSURE SHUTDOWN ALARM
There is a 10 second delay before oil pressure is monitored.
HIGH COOLANT TEMPERATURE SHUTDOWN ALARM
There is a 10 second delay before engine temperature is moni-
tored.
Once running there is a 1/4 second delay before shut down. The
limit is set at 125° C or 257° F.
OVERCRANK SHUTDOWN ALARM
Occurs if the engine has not started within the specified crank
cycle.
OVERSPEED SHUTDOWN ALARM
Warning indicator is measured and calculated by the microproces-
sor. Overspeed is defined as +20% of nominal engine speed for 3
seconds, or +25% immediate.
Nominal engine speed = 60.0 Hz
RPM SENSOR FAILURE SHUTDOWN ALARM
During cranking: If the board does not see a valid RPM signal
within four (4) seconds of cranking it will shut down and lock out
on RPM sensor loss.
During running: If the RPM signal is lost for one full second the
board will shut the engine down, wait 15 seconds, then re-crank
the engine if in AUTO, it will not re-crank in MANUAL.
If no RPM signal is detected within the first four (4) seconds of
cranking, the control board will shut the engine down and latch out
on RPM sensor loss.
If the RPM signal is detected the engine will start and run normally.
If the RPM signal is subsequently lost the control board will try
two more re-cranks before latching out and flashing the RPM
Sensor Failure message (if it is in AUTO).
8-4
CntrlNexus001 Rev. D 04/11
Control Panel

CHECK ENGINE MESSAGE
The control system has detected an emissions related fault. This
fault cannot be cleared using the control panel interface. The unit
will continue to operate in automatic mode. Contact your local
servicing dealer.
UNDER-FREQUENCY SHUTDOWN ALARM
After starting, if the generator stays under frequency for more than
30 seconds, it will shutdown.
LOW BATTERY ALARM
While running, if the average battery voltage falls below 11.9 volts
for one (1) minute, the low battery alarm will be displayed.
LOW BATTERY WARNING
The microprocessor will continually monitor the battery voltage
and display the Low Battery Voltage message if the battery voltage
falls below 12.2 Volts for one (1) minute.
No other action is taken on a low battery warning condition. The
warning will automatically clear if the battery voltage rises above
12.2 volts.
NOTE:
The battery sentinel is a separate feature that monitors battery
condition.
LOW COOLANT LEVEL ALARM
This is a shutdown alarm. The sensor will be continuously moni-
tored. If an error condition is seen for five (5) consecutive sec-
onds, the alarm will be displayed.
MISSING CAM PULSE ALARM
This is a shutdown alarm. The alarm will activate after five (5)
seconds of continuously missing cam pulses.
MISSING CRANK PULSE ALARM
This is a shutdown alarm. The alarm will activate after 12 con-
secutive revs where crank pulses are missing.
LOW FUEL PRESSURE WARNING
Fuel pressure is monitored by a digital sensor with a fixed setpoint
of below five (5) inches water column.
GOVERNOR SENSOR FAULT ALARM
The governor position is monitored by an analog feedback signal. If
the throttle position is seen outside of the normal operating range,
a shutdown alarm is displayed. If the throttle is commanded to
move, and no movement is seen, a shutdown alarm is displayed.
WIRING ERROR ALARM
When power is first apllied to the contoller, the software will per-
form a check on the wiring of the transfer output, and ensure it
does not have high voltage on the wire. If this is the case, it will
signal a miswire alarm and will not run. The test can be skipped
by use of the escape key.
UNDERVOLTAGE ALARM
If the generator voltage falls below 60% for >5 seconds, an alarm
will be issued.
8-5
CntrlNexus001 Rev. D 04/11
Control Panel
Figure 1 – Generator Control Panel

OVERVOLTAGE ALARM
If the generator voltage rises above 110% for >3 seconds, an
alarm will be issued.
If the generator voltage rises above 130% for >0.2 seconds, an
alarm will be issued.
INTERNAL FAILURE SHUTDOWN ALARM
Any internal failure that can be detected such as corrupted
firmware will cause this shutdown alarm. This alarm cannot be
cleared.
CANBUS ALARM
Where applicable, if the Canbus communications link fails to com-
municate, a “Canbus Alarm” will be generated. This only applies
to systems with external ignition modules. The alarm may be
generated if:
1. The physical link is broken.
2. The Ignition Module fails or resets.
3. The Nexus Controller fails or resets.
4. Having the Battery Chargers 120 VAC connected without a
battery installed.
5. A blown 10 amp Ignition Module fuse (approximately 12
inches away from the starter).
6. A blown 25 amp system fuse (located approximately 12
inches away from the DC alternator).
NOTE:
The “Canbus Alarm” will not clear on its own. To clear the
alarm, press the “enter” key to acknowledge the alarm. The
alarm will clear and if the fault is still present, the alarm will
reoccur.
IGNITION ALARM
When an ignition alarm occurs, a generic message “Ignition Fault”
will be displayed as the fault code.
MAINTENANCE WARNING
When a maintenance period expires, a warning message will be
posted. The warning can be reset by hitting the Enter key. Resetting
will clear the warning and reset the maintenance counters for the
condition annunciated. The history log will reflect the maintenance
warning.
ALARM CANCEL
When the generator is shut down due to a latching alarm, the Auto
/Off/ Manual switch must be set to the off position and the ENTER
key pressed to unlatch any active fault and clear the corresponding
fault alarm message.
COMMON ALARM RELAY
The common alarm relay will be activated if there is a shutdown
alarm. It will not activate on warnings or indicate that the Auto/Off/
Manual switch is in the OFF position. The OFF position will clear
the alarms and the relay. The relay will not be used to indicate a
generator is not activated.
The common alarm connections are wired to a set of potential-
free (dry) contacts on the Nexus controller board. These Normally
Open (N.O.) contacts close when an alarm condition occurs and
are used to activate a remote signaling device. The circuit is rated
for a maximum of 130mA at 24 VDC. The connections are a short
set of free hanging wires that exit the engine harness loom directly
behind the Nexus Control Panel and are labeled numbers 209 and
210.
MAINTENANCE ALERTS
Maintenance alerts will be provided for these conditions (see the
Maintenance Alert Chart).
SERVICE SCHEDULE ‘A’
Inspect Accessory drive alert 1yr /100hrs
Coolant change & flush 1yr /100hrs
Inspect spark plugs alert 1yr /100hrs
Change oil & filter alert 1yr /100hrs
Inspect battery alert 1yr /100hrs
Change / Inspect air filter alert 1yr /100hrs
SERVICE SCHEDULE ‘B’
Change / Inspect spark plugs alert 2yr/ 250hr
8-6
CntrlNexus001 Rev. D 04/11
Control Panel

MAINTENANCE ALERT CHART
CONDITION 1.6 CHERY 2.4/1800 MITSU 2.4/3600 MITSU 4.2 FORD
Change oil & filter alert 3mo/30hrs break-in
1yr/100hrs
3mo/30hrs break-in
1yr/100hrs
3mo/30hrs break-in
1yr/100hrs
3mo/30hrs break-in
1yr/100hrs
Inspect/clean air inlet &
exhaust alert
3mo/30hrs break-in
6mo/50hrs
3mo/30hrs break-in
6mo/50hrs
3mo/30hrs break-in
6mo/50hrs
3mo/30hrs break-in
6mo/50hrs
Change / Inspect air filter
alert
1yr/100hr 1yr/100hr 1yr/100hr 1yr/100hr
Inspect spark plugs alert 1yr /100hrs 1yr /100hrs 1yr /100hrs 1yr /100hrs 1yr /100hrs
Change / Inspect spark
plugs alert
2yr/ 250hr 2yr/ 250hr 2yr/ 250hr 2yr/ 250hr
Inspect Accessory drive
alert
3mo/30hrs break-in
1yr /100hrs
3mo/30hrs break-in
1yr /100hrs
3mo/30hrs break-in
1yr /100hrs
3mo/30hrs break-in
1yr /100hrs
Coolant change & flush 1yr /100hrs 1yr /100hrs 1yr /100hrs 1yr /100hrs
Inspect battery alert 1yr /100hrs 1yr /100hrs 1yr /100hrs 1yr /100hrs
8-7
CntrlNexus001 Rev. D 04/11
Control Panel

8-8
CntrlNexus001 Rev. D 04/11
Control Panel
ACTIVATION
RUN LOGALARM LOG
HISTORY STATUS
COMMANDSTATE VERSIONSDISPLAY
GENERATOR
FREQUENCY
ENGINE
HOURS
ENGINE
RPM
BATTERY
VO LTAGE
DEBUG
INPUTS OUTPUTS DISPLAYS
EDIT
LANGUAGE
TIME/DATE
EXERCISE
TIME/SPEED
ESC Press the “ESCAPE” key
to jump back up through
the menu levels.
+ / - Use the “+/-” key
to navigate through
the menu.
ENTER Use the “ENTER” key
to select items or
enter data.
ESC
ESC
ESC
ESC
ESC ESC
RESET
MAINTENANCE
QT TEST
MAIN MENU
MENU SYSTEM

STATIONARY EMERGENCY
GENERATOR CONTROL AND
OPERATION
Refer to the appropriate control panel operator’s manual for this
unit.
OPERATING UNIT WITH MANUAL
TRANSFER SWITCH
If the Stationary Emergency Generator was installed in conjunction
with a transfer switch capable of manual operation only, the fol-
lowing procedure applies. A manually operated transfer switch is
one that will not provide automatic start-up and does not include
an intelligence circuit.
ENGINE START-UP AND TRANSFER
For additional information, refer to the applicable control panel
manual for this unit, as well as any literature pertaining to the
specific transfer switch.
n
The Maintenance Disconnect Switch and the
AUTO/OFF/MANUAL switches (if so equipped)
must be set properly, or the generator will
crank and start as soon as the utility power to
the transfer switch is turned off. Refer to appli-
cable control panel and transfer switch manuals
for more information.
n
Do not proceed until certain that utility source
voltage is available to the transfer switch and
the transfer switch main contacts are set to
UTILITY.
Do not attempt manual operation until all
power supplies to the transfer switch have been
positively turned off, or extremely dangerous -
possibly lethal - electrical shock will result.
Transfer switch enclosure doors should be kept
closed and locked. Only authorized personnel
should be allowed access to the transfer switch
interior. Extremely high and dangerous voltages
are present in the transfer switch.
In order to transfer load from the utility source to the generator,
follow these directions:
Turn OFF or disconnect the utility power circuit to the transfer •
switch, using the means provided (such as the utility source
main line circuit breaker).
Set the transfer handle to its UTILITY (NORMAL) position with •
load circuits connected to the utility power supply.
Set the generator’s main line circuit breaker to its OFF (or OPEN) •
position.
Start the generator.•
n Do not crank the engine continuously for lon-
ger than 30 seconds, or the heat may
damage the starter motor.
Let engine stabilize and warm up.•
Check all applicable instrument and gauge readings. When •
certain that all readings are correct, move the transfer switch
manual handle to the STANDBY (or EMERGENCY STANDBY)
position, i.e., load circuits supplied by the generator.
Set the generator’s main line circuit breaker to its ON (or •
CLOSED) position.
Load circuits are now powered by the generator.•
RETRANSFER AND SHUTDOWN
For additional information, refer to the applicable control panel
manual for this unit, as well as any literature pertaining to the
specific transfer switch.
To transfer the load back to the utility power source and shut down
the generator, follow these directions:
Set the generator’s main line circuit breaker to its OFF (or OPEN) •
position.
Manually move the transfer switch handle to its UTILITY •
(NORMAL) position, i.e., load circuits connected to the utility.
Turn ON the utility power supply to the transfer switch, using •
the means provided (such as the utility power source main line
circuit breaker).
Let the generator run at no-load for a few minutes to stabilize •
internal temperatures.
Shut down the generator.•
OPERATING UNIT WITH AUTOMATIC
TRANSFER SWITCH
If the Stationary Emergency Generator has been installed with an
automatic transfer switch, the engine may be started and stopped
automatically or manually.
NOTE:
Refer to the applicable manual for your transfer switch and to
“Transfer Switch Start Signal Connections”. In addition, please
note the dangers under “Engine Start-up and Transfer.”
9-1
Oper001 Rev. D 05/10
Operation

GENERAL MAINTENANCE
Before working on the Stationary Emergency
Generator, ensure the following:
The AUTO/OFF/MANUAL switch is in the OFF position.•
The control panel fuse has been removed from the control •
box.
The 120VAC supply to the battery charger is switched OFF.•
The negative battery cable has been removed.•
CHECK ENGINE OIL
Check engine crankcase oil level (Figure 10.1) according to the
Service Schedule and SIB10-10-L24G.
Remove oil dipstick and wipe dry with a clean, lint-free cloth.•
Install oil dipstick, then remove again.•
Oil should be between FULL and ADD marks.•
If oil level is below the dipstick ADD mark, remove oil fill cap-. •
Add the recommended oil to bring oil level up to the FULL
mark. DO NOT FILL ABOVE THE “FULL” MARK. See “Engine Oil
Recommendations” for recommended oils.
Figure 10.1 - Oil Dipstick and Oil Fill Cap
Oil
Dipstick
Oil Fill Cap
Oil Filter
CHANGING ENGINE OIL
n Hot oil may cause burns. Allow engine to cool
before draining oil. Avoid prolonged or repeat-
ed skin exposure with used oil. Thoroughly
wash exposed areas with soap.
Refer to the Service Schedule for engine oil and filter change fre-
quencies.
Drain the oil while the engine is still warm from running. This
means warm up the engine, shut it down and drain immediately
as follows:
1. Remove the drain hose from its retaining clip or cut the zip-tie
securing the oil drain hose.
2. Loosen and remove OIL DRAIN HOSE CAP. Drain oil com-
pletely into suitable container.
3. When all oil has drained, install and tighten OIL DRAIN HOSE
CAP and secure drain hose with a new zip-tie, or place the
hose in its retaining clip.
4. Turn OIL FILTER (Figure 10.1) counterclockwise and remove.
Properly dispose of old filter.
5. Apply light coating of new engine oil to seal of new oil fil-
ter. Install FILTER and tighten by hand only. DO NOT OVER
TIGHTEN.
6. Remove OIL FILL CAP and add recommended oil. Crankcase
oil capacity is listed in the "Specifications" section.
n After refilling the crankcase with oil, always
check oil level on dipstick. NEVER OPERATE
ENGINE WITH OIL BELOW THE DIPSTICK “ADD”
MARK.
7. Start engine and check for oil leaks.
8. Shut OFF engine and wait 10 minutes for the oil to settle down
into the oil pan. Recheck oil level on dipstick. DO NOT fill
above the dipstick "FULL" mark.
9. Dispose of used oil at a proper collection center.
COOLING INTAKE/OUTLET
Air intake and outlet openings in the generator compartment must
be open and unobstructed for continued proper operation. This
includes such obstructions as high grass, weeds, brush, leaves
and snow.
Without sufficient cooling and ventilating air flow, the engine/gen-
erator quickly overheats, which causes it to shut down. (See the
installation diagram.)
The exhaust system parts from this product get
extremely hot and remains hot after shutdown.
High grass, weeds, brush, leaves, etc. must
remain clear of the exhaust. Such materials may
ignite and burn from the heat of the exhaust
system.
INSPECT COOLING SYSTEM
Inspect engine cooling system. See the Service Schedule.•
Check hoses for damage, deterioration, leaks, etc. Correct any •
discrepancies found.
Check hose clamps for tightness.•
10-1
Maint026 Rev. A 05/10
Maintenance

ENGINE COOLANT
Check coolant level in coolant recovery bottle. See the Specifications
and Service Schedule sections.
Add recommended coolant mixture as necessary.•
Periodically remove radiator pressure cap (only when engine •
has cooled down) to make sure the coolant recovery system
is functioning properly. Coolant should be at bottom of radia-
tor filler neck. If coolant level is low, inspect gasket in radiator
pressure cap. Replace cap, if necessary. To have pressure cap
tested, contact a Service Facility. Inspect cooling system and
coolant recovery system for leaks.
COOLANT CHANGE
Every year, have a service facility drain, flush and refill the cooling
system. See the Specifications and Service Schedule for cooling
system recommendations.
OVERLOAD PROTECTION FOR ENGINE DC ELECTRICAL
SYSTEM
Engine cranking, start up and running are controlled by a solid
state Engine Controller circuit board. Battery voltage is delivered
to that circuit board via the control panel fuse. This overcurrent
protection device will open if the circuit is overloaded.
n If a circuit breaker opens or a fuse element
melts, find the cause of the overload before
resetting the circuit breaker or replacing the
fuse.
EXERCISE SYSTEM
Starts the Stationary Emergency Generator engine once every
seven days and lets it run for 12 minutes.
PERFORM VISUAL INSPECTION
Complete a thorough visual inspection of the entire engine-genera-
tor monthly. Look for obvious damage, loose, missing or corroded
nuts, bolts and other fasteners. Look for fuel, oil or coolant leaks.
INSPECT EXHAUST SYSTEM
Inspect the exhaust system at least once every year. Check all
exhaust system pipes, mufflers, clamps, etc. for condition, tight-
ness, leaks, security, damage.
CHECK FAN BELT
Inspect fan belts every year. Replace any damaged, deterio-•
rated, worn or otherwise defective belt.
Check fan belt tension. Thumb pressure, exerted midway •
between pulleys, should deflect about 3/8 to 5/8 of an inch.
Adjust belt tension as required.
Check fan belt alignment (see Figure 10.2).•
Figure 10.2 – Fan Belt
INSPECT ENGINE GOVERNOR
Visually inspect electronic governor.
n Do not attempt to adjust the governor. Only
qualified service facilities should adjust the
governor. Excessively high operating speeds
are dangerous and increase the risk of personal
injury. Low speeds impose a heavy load on the
engine when adequate engine power is not
available and may shorten engine life. Correct
rated frequency and voltage are supplied only
at the proper governed speed. Some connected
electrical load devices may be damaged by
incorrect frequency and/or voltage. Only quali-
fied service technicians should adjust the gov-
erned speed.
CHANGING THE ENGINE AIR FILTER
To replace the engine air filter, remove the air filter cover and
replace the air filter making sure it is positioned properly before
reattaching the cover (Figure 10.3).
See the Service Schedule for air filter maintenance.
10-2
Maint026 Rev. A 05/10
Maintenance

Figure 10.3 – Engine Air Filter
Air Filter
SPARK PLUGS
Reset the spark plug gap or replace the spark plugs as neces-
sary.
1. Clean the area around the base of the spark plugs to keep dirt
and debris out of the engine. Clean by scraping or washing
using a wire brush and commercial solvent. Do not blast the
spark plugs to clean.
2. Remove the spark plugs and check the condition. Replace
the spark plugs if worn or if reuse is questionable. See the
“Service Schedule” section for recommended inspection.
3. Check the spark plug gap using a wire feeler gauge. See the
Specifications section for the required spark plug gap.
BATTERY MAINTENANCE
The battery should be inspected per the Service Schedule section.
The following procedure should be followed for inspection:
1. Inspect the battery posts and cables for tightness and corro-
sion. Tighten and clean as necessary.
2. Check the battery fluid level of unsealed batteries and, if
necessary, fill with DISTILLED WATER ONLY. DO NOT USE TAP
WATER IN BATTERIES.
3. Have the state of charge and condition checked. This should
be done with an automotive-type battery hydrometer.
Storage batteries give off explosive hydrogen
gas. This gas can form an explosive mixture
around the battery for several hours after
charging. The slightest spark can ignite the gas
and cause an explosion. Such an explosion can
shatter the battery and cause blindness or other
injury. Any area that houses a storage battery
must be properly ventilated. Do not allow smok-
ing, open flame, sparks or any spark producing
tools or equipment near the battery.
n Battery electrolyte fluid is an extremely corro-
sive sulfuric acid solution that can cause severe
burns. Do not permit fluid to contact eyes, skin,
clothing, painted surfaces, etc. Wear protective
goggles, protective clothing and gloves when
handling a battery. If fluid is spilled, flush the
affected area immediately with clear water.
n Do not use any jumper cables or booster bat-
tery to crank and start the generator engine. If
the battery has completely discharged, remove
it from the generator for recharging.
n Be sure the AUTO/OFF/MANUAL switch is set
to the OFF position, before connecting the
battery cables. If the switch is set to AUTO or
MANUAL, the generator can crank and start as
soon as the battery cables are connected.
Be sure the 120VAC power supply to the battery
is turned OFF, or sparking may occur at the bat-
tery posts as the cables are attached and cause
an explosion.
BATTERY REPLACEMENT
NOTE:
Unit DOES NOT include battery.
When supplying or replacing the battery, the recommended num-
ber and type of battery is listed in the Specifications Section.
NOTE:
The BCI number should be located directly on the battery.
BATTERY FLUID
Check battery electrolyte fluid based on the Service Schedule.
Fluid should cover separators in all battery cells. If fluid level is
low, add distilled water to cover tops of separators. DO NOT USE
TAP WATER IN BATTERY.
CLEANING THE STATIONARY EMERGENCY GENERATOR
Keep the generator as clean and as dry as possible. Dirt and
moisture that accumulates on internal generator windings have an
adverse effect on insulation resistance.
Periodically clean generator exterior surfaces. A soft brush may be
used to loosen caked on dirt. Use a vacuum system or dry, low
pressure air to remove any accumulations of dirt. The generator is
housed inside an all-weather enclosure, clean the enclosure with a
soft, damp cloth or sponge and water.
Once each year have the generator cleaned and inspected by a
Service Dealer. That dealer will use dry, low pressure air to clean
internal windings.
Finally, have the insulation resistance of stator and rotor windings
checked. If insulation resistances are excessively low, the genera-
tor may require drying.
10-3
Maint026 Rev. A 05/10
Maintenance

SERVICE SCHEDULE
System / Component Frequency Procedure
Weekly - W
Monthly - M
Yearly - Y
Inspect Change Clean
Fuel
Fuel Lines & Connections M X
Lubrication
Oil Level M X*
Oil Y X**
Oil Filter Y X**
Cooling
Engine Coolant Lines & Connections M X
Engine Coolant Level M X
Engine Coolant Y X
Enclosure Louvers W X X
Engine
Air Cleaner Y X X***
Spark Plugs Y X X***
Battery
Remove Corrosion, Ensure Dryness M X X
Clean & Tighten Battery Terminals M X X
Check Charge State M X X***
Check Electrolyte Level M X X***
General Condition
Vibration, Noise, Leakage, Temperature M X
Generator System
Complete Tune-up and System Inspection Y To be completed by an Authorized Service Dealer.
Footnotes
* Inspect the oil level monthly or every 12 hours during continuous operation.
** Change oil and oil filter after the first 30 hours of operation and then every 100 hours or annually thereafter, whichever occurs first.
Change sooner when operating under heavy load or in a dusty or dirty environment or in high ambient temperatures.
*** Replace as necessary.
11-1
SrvSchd004 Rev. B 05/10
Service Schedule

Troubleshooting
TROUBLESHOOTING GUIDE
PROBLEM CAUSE CORRECTION
Engine won’t crank. 1. Control panel 7.5 amp fuse blown. 1. Replace fuse.*
2. Loose or corroded or defective 2. Tighten, clean or replace
battery cables. battery cables as necessary.*
3. Defective starter contactor. 3. Replace contactor.*
4. Defective starter motor. 4. Replace starter motor.*
5. Dead or Defective Battery. 5. Remove, change or replace battery.*
Engine cranks but won't start. 1. Out of fuel. 1. Replenish fuel/turn on fuel valve.
2. Fuel solenoid (FS) is defective 2. Replace solenoid.*
3. Spark plugs defective. 3. Clean, regap or replace plugs.
Engine starts hard, runs rough. 1. Air cleaner plugged or damaged. 1. Clean or replace as needed.
2. Defective spark plugs. 2. Clean, regap or replace plugs.
3. Fuel pressure incorrect. 3. Confirm fuel pressure to regulator is as
recommended in SPECIFICATIONS.*
4. Insufficient fuel supply. 4. Confirm fuel pressure to regualtor is as
recommended in SPECIFICATIONS.*
5. Fuel system set to wrong fuel type. 5. Reconfigure the fuel system. (See
RECONFIGURING THE FUEL SYSTEM in
manual.*
Engine starts then shuts down. 1. Engine oil level is low. 1. Check oil and add oil as needed.
2. Engine is overheated. 2. Check cooling system for leaks.
3. Defective Low Oil Pressure Switch 3. Replace switch.*
4. Defective Coolant Temperature Switch 4. Replace switch.*
5. Defective Control Module circuit board. 5. Replace board.*
6. Coolant Level is Low. 6. Repair leak - Add coolant.
7. Defective Low Coolant Level Switch 7. Replace Switch.*
AUTO/OFF/MANUAL Switch at OFF, 1. Defective AUTO/OFF/MANUAL switch 1. Replace board.*
engine continues to run. 2. Defective Control Module circuit board 2. Replace board.*
No AC output from generator. 1. Main line circuit breaker is tripped/open. 1. Reset to ON/CLOSED.
2. Generator internal failure. 2. *
3. Thermal circuit breaker open. 3. Auto-reset - Wait 5 min. and attempt restart.
*Contact the nearest Dealer for assistance.
12-1
Trblsht003 Rev. B 05/10


1 0F9677 1 ROTOR-2390-45KD1 CPL
0G0056 1 ROTOR-2390-35KD1 CPL
0G0959 1 ROTOR-2390-45KD1 CPL (G2)
0G1155 1 ROTOR-2390-35KD1 CPL (G2)
0G1931 1 ROTOR 25KW 3PH DIRECT 390 1800
0G2101 1 ROTOR 25KW 1PH DIRECT 390 1800
0G3734 1 RTR-2390-60KD2 CPL
0G6562 1 RTR 390 35AD1 CPL
0G6564 1 RTR 390 35KD1 CPL
2 0F9664 1 STATOR-390 45K 2P 1PH DIRECT
0G0057 1 STATOR-2390-35AD1 CPL
0G0058 1 STATOR-2390-35KD1 CPL
0G0059 1 STATOR-2390-35GD1 CPL
0G0183 1 STATOR-2309-45KW 2P 3PH 208V
0G0184 1 STATOR-2309-45-KD1 CPL
0G1932 1 ASSY STR 390 25GD3 CPL
0G2098 1 ASSY STR 390 25AD1 CPL
0G2099 1 ASSY STR 390 25KD3 CPL
0G2100 1 ASSY STR 390 25JD3 CPL
0G3736 1 ASSY STR 2390 60AD2 CPL
0G3737 1 ASSY STR 390 60KW 2P 3PH 208V
0G3738 1 ASSY STR 390 60KW 2P 3PH 480V
0G6104 1 STR-2390--45JD1 CPL
0G6563 1 STR 390 35AD1 CPL
0G6565 1 STR 390 35GD1 CPL
0G6566 1 STR 390 35KD1 CPL
0G6567 1 STR 390 35JD1 CPL
0H0201 1 STR-2390--60JD2 CPL
0H1299 1 ASSY STR 390 36AD1 CPL
0H1300 1 ASSY STR 390 36JD1 CPL
0H1301 1 ASSY STR 390 36 GD1 CPL
3 0C9708 REF INSTR HYPOT TEST (NOT SHOWN)
4 SEE ENGINE EV REF ENGINE ADAPTER
5 SEE ENGINE EV REF FLEXPLATE
6 0F5767B 1 ASSY FLYWHEEL CPL W/40MM FAN B
7 0E5706 1 REAR BEARING CARRIER 390/DRCT
8 0F7874 1 ASSY BRUSH HOLDER 390/HSB
0F7874A 1 ASSY BRUSH HOLDER 390/HSB
9 0G0587 1 GUARD REAR BEARING CARRIER
10 038150 4 WASHER FLAT #8 ZINC
11 023454 1 KEY WOODRUFF #E
12 077043E 1 CONDUIT FLEX 1.0" ID (35” LG)
13 04576100BU 4 STUD M14-2.0 570 G5 ZINC
14 052646 4 WASHER FLAT M14
15 043123 4 WASHER LOCK M14
16 051779 4 NUT HEX M14-2.0 G8 YEL CHR
17 0A2601 1 SCREW HHC M16-2.0 X 45 G8.8
18 072879 1 SPACER .69 X 2.75 X .37 ST/ZNC
19 0F8408 4 SCREW HHC M10-1.50 X 16 G10.9
20 046526 4 WASHER LOCK M10
21 0C3992 4 SCREW HHTT M4-0.7 X 16 BP
22 022264 4 WASHER LOCK #8-M4
23 * 047248 1 BALL BEARING-45 MM
24 * 070892 1 SLIP RING MACHINED
25 0G0588 1 GUARD REAR BEARING CARRIER
26 077043A 1 CONDUIT FLEX .38" ID (60”)
27 056326 1 TRIM VINYL BLACK 1/8GP (16.5”LG)
* ROTOR REPLACEMENT PARTS




EXPLODED VIEW: CONBOX C2 CPL
DRAWING #: 0H7326 GROUP A
APPLICABLE TO:
REVISION: H-9621-F Page 4 of 8
DATE: 9/26/11
ITEM PART# QTY. DESCRIPTION
1 0H6266 1 BACK PANEL CONBOX SUPPORT C2
2 0H6265 1 TOP PANEL CONBOX SUPPORT C2
3 0H6160 1 COVER WIRE ENTRY CONBOX
4 057073 2 JUNCTION BLOCK 3/8-16
5 056739 1 RELAY SOLENOID 12VDC PNL MNT
(6)6 0H67330ST0R 1 BRACKET GIMBAL CONTROL PNL RAW
7 0H7668B 1 ASSY CTRL PROGRAMMED
8 0A2115 2 WASHER FLAT NYLON 0.257 X 0.625
9 022097 3 WASHER LOCK M6-1/4
10 022473 8 WASHER FLAT 1/4-M6 ZINC
11 0H7115 2 KNOB M6-1.0 CONTROL PANEL
12 0C2454 13 SCREW HWHT M6-1 X 16 N WA Z/JS
13 0F5458 12 SCREW HHSP #10 X 3/8 HI-LOW
14 042568 2 SCREW HHC M6-1.0 X 20 C8.8
(6)15 0H88390ST0R 1 SHIELD HIGH/LOW C2 RAW
16 0C2265 4 SCREW PHTT M4-0.7 X 12 ZP
(3)17 0H6169B 1 ASSY PROG 2010 IGN MOD 6 CYL
(3)18 023897 4 WASHER FLAT #10 ZINC
(3)19 036943 2 SCREW PPHM #10-32 X 2
(3)20 022152 2 WASHER LOCK #10
(3)21 022158 2 NUT HEX #10-32 STEEL
(3)22 055934D 1 CLAMP STL/VNL 1.06 X .406 Z
(2)23 0D5464B 1 NEUTRAL BLOCK 390/200-400A
24 022237 2 WASHER LOCK 3/8
25 022241 2 NUT HEX 3/8-16 STEEL
26 0D3700 6 NUT FLANGE M6-1.0 NYLOK
27 0H6267 1 COVER VOLTAGE SHIELD
28 0F5752F 1 RES WW 15R 5% 25W QK CONN
29 052777 3 WASHER FLAT M3
30 043182 3 WASHER LOCK M3
31 051714 3 NUT HEX M3-0.5 G8 CLEAR ZINC
32 0D7177V 2 DIODE BRIDGE 1P 35A 1000V
33 051713 2 WASHER FLAT M5
34 049226 2 WASHER LOCK M5
35 051716 2 NUT HEX M5-0.8 G8 CLEAR ZINC
36 056326 1 TRIM VINYL BLACK 1/8GP (3”LG)
37 0J0489 1 DECAL CUSTOMER POWER CONNECT
38 0H7292 1 DECAL CUSTOMER CONTROL CONNECT
39 0H7293 1 DECAL CONBOX TB1 CONNECTIONS
40 026850 1 WASHER LOCK EXT 1/4 STL
41 055414 1 LUG SLDLSS #2-#8 X 17/64 CU
(4)42 SEE CHART 1 CIRCUIT BREAKER
(6)43 0H81040AS0R 1 COVER DPE BREAKER NEXUS RAW
44 0A9457 1 DECAL NEUTRAL
45 022264 4 WASHER LOCK #8-M4
46 045764 2 SCREW HHTT M4-0.7 X 8 ZP
47 067210A 1 DECAL GROUND LUG
(1)48 0D7393T REF TERM BLOCK 3P UL 12-20AWG
(1)49 0D7393U REF TERM BLOCK 4P UL 12-20AWG
(1)50 0F5376S0AR REF MX150L SLRRMNT 22-18 8P W/O GA
(1)51 0F5396S0AR REF MX150L SLRRMNT 22-18 12P W/OGA
(2)52 0A7822 REF LUG SLDLSS 600/250-1/0X1/4-28
(2)53 083896 REF WASHER LOCK 1/4-M6 SS
(2)54 045335 REF SCREW HHC 1/4-28 X 3/4 G5
55 029289 1 TAPE ELEC 1/2 FOAM (69“LG)
56 0F6146 1 HANG TAG 2 WIRE START (NOT SHOWN)
57 0H6692 1 HARN CONBOX NEXUS (NOT SHOWN)
58 0D6029 5 SCREW HHTT M6-1.0 X 16 ZYC
59 0D7178T REF FUSE ATO TYPE 7.5AMP (BROWN)
60 0J3060 1 GASKET WIRE ENTRY COVER
61 0H8006 1 DECAL CAUTION ELEC SHOCK SM

EXPLODED VIEW: CONBOX C2 CPL
DRAWING #: 0H7326 GROUP A
APPLICABLE TO:
REVISION: H-9621-F Page 5 of 8
DATE: 9/26/11
ITEM PART# QTY. DESCRIPTION
UL CIRCUIT BREAKER (225AF)
A 0G5250 1 CB 175A 2 POLE 240V 225AF
B 0H7356 1 COVER CB C2 CPL
C 0F4186AGS0R 1 COVER CB DISH 2P G 225AF
D 0F8432A 1 INSULATOR CB 2P 225AF
E 0H7311 1 STANDOFF CB BOX CONBOX
F 045771 2 NUT HEX M8-1.25 G8 CLEAR ZINC
G 036261 4 RIVET POP .125 X .275 SS
H 0C2454 12 SCREW HWHT M6-1 X 16 N WA Z/JS
J 053640 2 SCREW RHM #8-32 X 3-1/4
K 038150 2 WASHER FLAT #8 ZINC
L 022264 2 WASHER LOCK #8-M4
M 022471 2 NUT HEX #8-32 STEEL
N 049897 4 SCREW SHC M8-1.25 X 20 G8
P 022129 6 WASHER LOCK M8-5/16
R 022145 4 WASHER FLAT 5/16-M8 ZINC
S 058306 2 SCREW SHC M8-1.25 X 25 C12.9
T 0F8843 2 BUS BAR 200A LUG ADAPTOR
U 0F8451 2 LUG SLDLSS 300 MCM-6 AL/CU
V 0G3259 1 DECAL TERMINAL SHOCK HZD BI
UL CIRCUIT BREAKER (400AF)
A 0F4153 1 CB 0250A 3P 480V G 400AF
B 0H6735 1 COVER CB 400AF C2 CONBOX
C 0A7822 3 LUG SLDLSS 600/250-1/0X1/4-28
D 0H6734 1 STANDOFF CB MOUNT CONBOX
E 042419 4 SCREW RHM 10-32 X 4
F 022097 6 WASHER LOCK M6-1/4
G 052647 6 SCREW SHC M10-1.5 X 25 C12.9
H 0C2454 12 SCREW HWHT M6-1 X 16 N WA Z/JS
J 046526 6 WASHER LOCK M10
K 023897 4 WASHER FLAT #10 ZINC
L 022152 4 WASHER LOCK #10
M 022158 4 NUT HEX #10-32 STEEL
N 023334 6 SCREW HHC 1/4-28 X 1/2 G5
P 022473 6 WASHER FLAT 1/4-M6 ZINC
Q 0G3259 1 DECAL TERMINAL SHOCK HZD BI
(1) ITEMS INCLUDED WITH HARNESS P/N 0H6692.
(2) ITEMS INCLUDED WITH NEUTRAL BLOCK P/N 0D5464B.
(3) ITEMS INCLUDED WITH 4.2L MODELS ONLY.
(4) SEE “C2 DPE BREAKER SELECTION” TABLE.
(5) QTY. REQ. FOR 2 POLE BREAKER / QTY. REQ. FOR 3 POLE BREAKER.
(6) SHEET METAL PARTS LISTED IN THE BOM TABLE ARE REPRESENTING GENERIC PARTS (NO COLOR)
• MANUFACTURING: FOR CORRECT MATERIAL AND COLOR REFER TO AS400 BOM.
• CUSTOMER: WHEN ORDERING REPLACEMENT PARTS ENTER BASE NUMBER (FIRST 6 DIGITS ONLY) IN THE
SYSTEM FOR CORRECT MATERIAL AND COLOR (FOR REFERENCE SEE GUIDELINE 0H7169).

EXPLODED VIEW: CONBOX C2 CPL
DRAWING #: 0H7326 GROUP A
APPLICABLE TO:
REVISION: H-9621-F Page 6 of 8
DATE: 9/26/11
ITEM PART# QTY. DESCRIPTION
UL CIRCUIT BREAKER (KG)
A 0H5582 1 CB 0300 3P 600V E KG LL
B 0H6740 1 COVER CB E KG C2 CONBOX
C 0D3700 4 NUT FLANGE M6-1.0 NYLOK
D 0H5581A 1 INSULATOR CB E 3P KG
E 0H6734 1 STANDOFF CB MOUNT CONBOX
G 022129 3 WASHER LOCK M8-5/16
H 0C2454 12 SCREW HWHT M6-1 X 16 N WA Z/JS
J 0D2157 4 SCREW SHC M6-1.0 X 50 C8.8
K 049897 3 SCREW SHC M8-1.25 X 20 G8
L 022145 3 WASHER FLAT 5/16-M8 ZINC
UL CIRCUIT BREAKER (FG)
A 0H5486 1 CB 0060 3P 480V E FG LL
B 0H7356 1 COVER CB C2 CPL
C 0H7434 1 COVER CB DISH 3P E FG
D 0H4698A 1 INSULATOR CB 3P E TYPE CC/FG
E 0H7311 1 STANDOFF CB BOX CONBOX
F 022471 4 NUT HEX #8-32 STEEL
G 036261 4 RIVET POP .125 X .275 SS
H 0C2454 12 SCREW HWHT M6-1 X 16 N WA Z/JS
J 0H5721 4 SCREW PPHM #8-32 X 1-3/4 ZINC
K 022264 4 WASHER LOCK #8-M4
L 038150 4 WASHER FLAT #8 ZINC
M 052619 3 SCREW HHC M5-0.8 X 20 G8.8
N 023897 3 WASHER FLAT #10 ZINC
P 049226 3 WASHER LOCK M5
UL CIRCUIT BREAKER (JG)
A 0H5580 1 CB 0250 3P 600V E JG LL
B 0H6739 1 COVER CB E JG C2 CONBOX
D 0H5576A 1 INSULATOR CB E 3P JG
E 0H6734 1 STANDOFF CB MOUNT CONBOX
F 022127 4 NUT HEX 1/4-20 STEEL
G 022097 4 WASHER LOCK M6-1/4
H 0C2454 12 SCREW HWHT M6-1 X 16 N WA Z/JS
J 022770 4 SCREW RHM 1/4-20 X 3
K 022473 4 WASHER FLAT 1/4-M6 ZINC
L 049897 3 SCREW SHC M8-1.25 X 20 G8
M 022145 3 WASHER FLAT 5/16-M8 ZINC
N 022129 3 WASHER LOCK M8-5/16
UL CIRCUIT BREAKER (CC)
A 0H4748 1 CB 0175A 2P 240V E CC LL
0H4915 1 CB 0150 3P 240V E CC LL
B 0H7356 1 COVER CB C2 CPL
C 0H7432 1 COVER CB DISH 2P E CC
0H7433 1 COVER CB DISH 3P E CC
(5)D 051716 2/3 NUT HEX M5-0.8 G8 CLEAR ZINC
E 0H7311 1 STANDOFF CB BOX CONBOX
(5)F 022471 2/4 NUT HEX #8-32 STEEL
G 036261 4 RIVET POP .125 X .275 SS
H 0C2454 12 SCREW HWHT M6-1 X 16 N WA Z/JS
(5)J 053640 2/4 SCREW RHM #8-32 X 3-1/4
(5)K 022264 2/4 WASHER LOCK #8-M4
(5)L 038150 2/4 WASHER FLAT #8 ZINC
(5)M 052619 2/3 SCREW HHC M5-0.8 X 20 G8.8
(5)N 023897 4/6 WASHER FLAT #10 ZINC
(5)P 049226 2/3 WASHER LOCK M5
(5) QTY. REQ. FOR 2 POLE BREAKER / QTY. REQ. FOR 3 POLE BREAKER.

EXPLODED VIEW: CONBOX C2 CPL
DRAWING #: 0H7326 GROUP A
APPLICABLE TO:
REVISION: H-9621-F Page 7 of 8
DATE: 9/26/11
ITEM PART# QTY. DESCRIPTION
UL CIRCUIT BREAKER (QN)
A 0E7284 1 CB 0175A 2P 240V S QN2 LL
B 0H7356 1 COVER CB C2 CPL
C 0H7429 1 COVER CB DISH 2P S QN
D 0E3664 1 BASE, QN CIRCUIT BREAKER
E 0H7311 1 STANDOFF CB BOX CONBOX
F 074908 2 SCREW HHTT M5-0.8 X 10 BP
G 036261 4 RIVET POP .125 X .275 SS
H 0C2454 12 SCREW HWHT M6-1 X 16 N WA Z/JS
UL CIRCUIT BREAKER (ED)
A 0D9693 1 CB 0125A 3P 480V S ED4 LL
B 0H6736 1 COVER CB S ED C2 CONBOX
C 022158 4 NUT HEX #10-32 STEEL
D 0F0492 1 INSULATOR CB S(ED-3P)
E 0H6734 1 STANDOFF CB MOUNT CONBOX
F 022152 4 WASHER LOCK #10
G 023897 4 WASHER FLAT #10 ZINC
H 0C2454 12 SCREW HWHT M6-1 X 16 N WA Z/JS
J 048927 4 SCREW RHM #10-32 X 4-1/2
UL CIRCUIT BREAKER (VL)
A 0H7519 1 CB 0300A 3P 600V S JG-VL LL
B 0H6738 1 COVER CB S JG VL C2 CONBOX
C 040976 3 SCREW SHC M8-1.25 X 20 C12.9
D 022129 3 WASHER LOCK M8-5/16
E 0H6734 1 STANDOFF CB MOUNT CONBOX
F 022145 3 WASHER FLAT 5/16-M8 ZINC
G 023897 4 WASHER FLAT #10 ZINC
H 0C2454 12 SCREW HWHT M6-1 X 16 N WA Z/JS
J 042419 4 SCREW RHM 10-32 X 4
K 022152 4 WASHER LOCK #10
L 022158 4 NUT HEX #10-32 STEEL
UL CIRCUIT BREAKER (FD)
A 0D5572 1 CB 0150A 3P 600V S FD6 LL
B 0H6737 1 COVER CB S FD6 C2 CONBOX
C 081320 4 SCREW SHC 1/4-20 X 4.5 G8.8 NZ
D 0F0199 1 INSULATOR CB FD FRAME 30MIL
E 0H6734 1 STANDOFF CB MOUNT CONBOX
F 022473 4 WASHER FLAT 1/4-M6 ZINC
G 022097 4 WASHER LOCK M6-1/4
H 0C2454 12 SCREW HWHT M6-1 X 16 N WA Z/JS
J 022127 4 NUT HEX 1/4-20 STEEL
EXPLODED VIEW: CONBOX C2 CPL
DRAWING #: 0H7326 GROUP A
APPLICABLE TO:
REVISION: H-9621-F Page 8 of 8
DATE: 9/26/11
THIS PAGE LEFT INTENTIONALLY BLANK


1 0G37260ST03 1 WELDMENT FRAME 2.4L C2 60KW
2 052860 4 NUT FLANGED HEX M12-1.75
3 052251 4 DAMPENER VIBRATION 40 BLUE
4 052257 4 SPACER .49 X .62 X 1.87 PWDR/ZNC
5 052252 4 DAMPENER VIBRATION
6 052259 4 WASHER FLAT M12
7 052891 4 SCREW HHC M12-1.75 X 80 G8.8
8 0536210410 1 ASSY WIRE 14.00"
9 042909 1 SCREW HHC M8-1.25 X 30 G8.8
10 047411 1 SCREW HHC M6-1.0 X 16 G8.8
11 055414 1 LUG SLDLSS #2-#8 X 17/64 CU
12 022447 1 WASHER SHAKEPROOF INT 1/4
13 022097 1 WASHER LOCK M6-1/4
14 022473 2 WASHER FLAT M6-1/4 ZINC
15 049813 1 NUT HEX M6 -1.0 G8 YEL CHR
16 022261 1 WASHER SHAKEPROOF INT 3/8
17 0F9597A 1 SUPPORT LH ENGINE 2.4L
18 045764 1 SCREW HHTT M4-0.7 X 8 BP
19 062963 4 SCREW HHC M10-1.25 X 30 G8.8
20 022302 5 WASHER LOCK 7/16
21 022131 5 WASHER FLAT 3/8-M10 ZINC
22 065852 1 SPRING CLIP HOLDER .37-.62
23 0F9597 1 SUPPORT RH ENGINE 2.4L
24 022129 1 WASHER LOCK M8-5/16
25 026204 1 WASHER SHAKEPROOF INT 5/16
26 022145 1 WASHER FLAT 5/16-M8 ZINC
27 045771 1 NUT HEX M8-1.25 G8 CLEAR ZINC
29 0F9596A 1 SPACER LH ENGINE MOUNT
30 052212 1 SCREW HHC M10-1.25 X 25 C8.8


1 0F3408C 1 BATTERY TRAY, C1 & C2
2 0F3411 1 STRAP BATTERY RETAINMENT
3 025507 REF WASHER SHAKEPROOF EXT 7/16 STL
4 052212 REF SCREW HHC M10-1.25 X 25 G8.8
5 046526 REF WASHER LOCK M10
6 022131 REF WASHER FLAT 3/8-M10 ZINC
7 050331A REF BATTERY POST COVER RED +
8 050331 REF BATTERY POST COVER BLACK -
9 038805Y 1 CABLE BATTERY BLACK #1 X 18.00
10 03880400AE 1 CABLE BATT RED #1 X 18.00
11 045771 REF NUT HEX M8-1.25 G8 YEL CHR
12 022129 REF WASHER LOCK M8-5/16
13 077483 REF BATTERY 12VDC 75-AH 26
14 0F3976 1 BOOT CONTACTOR CABLES
15 042568 4 SCREW HHC M6-1.0 X 20 C8.8
16 022145 REF WASHER FLAT 5/16-M8 ZINC
17 0D3700 4 NUT FLANGE M6-1.0 NYLOK
18 049811 4 WASHER FLAT M6


EXPLODED VIEW: AIR CLEANER 2.4L G2 TURBO
DRAWING #: 0H1954 GROUP D
APPLICABLE TO:
REVISION: H-3963 –B PAGE 2 OF 2
DATE: 2/27/09
ITEM PART# QTY. DESCRIPTION
1 0F4269 2 GASKET MIXER BODY
2 0H0030 1 ADAPTOR-MIXER
3 0G39340ST03 1 BRACKET AIR INTAKE
4 035480 1 BOLT U 5/16-18 X 2.06
5 0H0028 1 ADAPTOR-AIR CLEANER
6 0F4271 1 BASE PLATE, AIR CLEANER
7 0H0219 1 PLUG PLASTIC 2.5" BLACK
8 0F5418 1 ELEMENT AIR FILTER
9 0F4270 1 HOLD DOWN AIR CLEANER PLATED
10 0F6323 1 PLATE, AIR CLEANER TOP
11 0H0035 1 HOSE AIR INTAKE
12 0G0153 1 BARBED EL 90 1/2NPT X 3/4 HOSE
13 0D3700 4 NUT FLANGE M6-1.0 NYLOK
14 049811 8 WASHER, FLAT, M6
15 045757 4 SCREW HHC M6-1.0 X 25 G8.8
16 022097 4 WASHER LOCK M6-1/4
17 047411 4 SCREW HHC M6-1.0 X 16 C8.8
18 022145 2 WASHER FLAT 5/16-M8 ZINC
19 022129 2 WASHER LOCK M8-5/16
20 039253 2 SCREW HHC M8-1.25 X 20 G8.8
21 037561 1 NUT WING 1/4-20 W/NY INS ST ZN
22 0D3700 4 NUT FLANGE M6-1.0 NYLOK
23 049811 8 WASHER, FLAT, M6
24 045757 4 SCREW HHC M6-1.0 X 25 G8.8
25 022097 4 WASHER LOCK M6-1/4
26 047411 4 SCREW HHC M6-1.0 X 16 C8.8
27 086133C 2 CLAMP HI TORQUE 1.75 - 2.625
28 039253 2 SCREW HHC M8-1.25 X 20 G8.8
29 022129 4 WASHER LOCK M8-5/16
30 022145 4 WASHER FLAT 5/16-M8 ZINC
31 022259 2 NUT HEX 5/16-18 STEEL
32 0H1712 1 BARBED EL-90 POLY 1/2NPT X ¾
33 057822 2 CLAMP HOSE #8 .53-1.00
34 059057 1 HOSE 3/4 ID SAE-30R2 (7.62”LG”)
35 0H0027 1 FITTING VENT VALVE COVER 2.4L
047527(3)(4) 1 BARBED STR 1/2NPT X 3/4
0H1644(4) 1 FTG VNT VALVE COVER
0G10080103(4) 1(REF) GASKET, PCV VALVE
36(1)(2) 0H1787A 1 PIPE INSULATION ELBO
37(2) 0H1787 1 PIPE INSULATION (4.5”LG)
38(2) 0H1801 1 PIPE INSULATION TAPE (7”LG)
(1)TRIM PIPE INSULATION ELBOW TO FIT.
(2)INSULATION SHALL COMPLETELY COVER I/N’S 32, 34 & 35.
(3)APPLY PIPE SEALANT COMPOUND TO THREADS.
(4) ALTERNATE CONFIGURATION REQUIRES ALL NOTED PARTS.
NOTE: APPLY LOCTITE 620 BEARING RETAINMENT COMPOUND TO OUTSIDE
SURFACE OF FITTING (I/N 35) THAT PRESSES INTO VALVE COVER.



1
0H30830ST03
1
WELDMENT RADIATOR SUPPORT C2
2 0F2608 1 RADIATOR 598 X 568 X 49 CPL RH
3 0F5263 1 V-BELT 31/64" X 57-3/8"
4 046526 5 WASHER LOCK M10
(1) 5 059981 4 SCREW HHC M10-1.5 X 30 G10.9
6 0D3700 4 NUT FLANGE M6-1.0 NYLOK
7 0F5050A 1 SHIELD RADIATOR C4
8 0G9332C 1 OIL LINE REMOTE FILTER/ENGINE
9 0F2573 1 PULLEY FAN V-GROOVE 9"
10 0F4011 1 FAN COOL 22" DIA 10 BLADE LH
11 0H20620ST03 1 ARM BELT TENSIONER
(1) 12 0H2051 1 SHOULDER BOLT 1/2 X 2-1/4"
13 0F2862 1 SPRING TENSION CPL
14 0F2560 1 PULLEY V-BELT 4" FLANGED
15 022131 4 WASHER FLAT 3/8-M10 ZINC
16 0E2507 1 PROBE COOLANT LEVEL 3/8 NPTF
0H1827 1 PROBE COOLANT LEVEL 3/8-18NPTF
17 035685 2 CLAMP HOSE #28 1.32-2.25
18 0F2561 1 HUB FLEX PLATE
19 0C8145 8 WASHER FLEX (THIN)
20 052250 2 TAPE FOAM 1 X 1 (26.75” LG)
21 0C7043 12 DISK FLEX
22 0G9332B 1 OIL LINE REMOTE COOLER/FILTER
23 022473 8 WASHER FLAT 1/4-M6 ZINC
(1) 24 0C8146 4 SCREW HHC 5/16-24 X 1.124
25 022097 16 WASHER LOCK M6-1/4
26 076749 1 TANK COOLANT RECOVERY
(2) 27 048031C 2(REF) CLAMP HOSE BAND 1/4
28 031971 1 BEARING #6205 2NSE C3 E SRI2 S
29 0H0271 1 PULLEY 5.125" DIA MACHINED
(1) 30 042911 1 SCREW HHC M10-1.5 X 30 G8.8
31 0F2872 1 SCREW HHC 1/2-13 X 2" G8
32 022304 1 WASHER FLAT 1/2 ZINC
33 022195 1 WASHER LOCK 1/2
34 022196 1 NUT HEX 1/2-13 STEEL
35 0F8651 8 SCREW HHFC M8-1.25 X 20 W/M6
36 052677 1 WASHER NYLON .50 X .87 X .06
37 0F9867 1 SHAFT FAN DRIVE
38 0F2461 1 RETAINER BEARING
39 022145 16 WASHER FLAT 5/16-M8 ZINC
40 022129 9 WASHER LOCK M8-5/16
(1) 41 039287 1 SCREW HHC M8-1.25 X 45 C8.8
42 082774 1 KEY WOODRUFF 4 X 19D
43 0G0795 1 HOSE LOWER RADIATOR G2
44 0G0816 1 HOSE UPPER RADIATOR G2 (USED WITH MANFLD
P/N 0G0707)
0H1546 1 HOSE UPPER RADIATOR G2 (USED WITH MANFLD
P/N 0G8488)
45 049813 8 NUT HEX M6 X 1.0 G8 YEL CHR
46 052644 1 SPACER .5 X 1.5 X .25 STL/ZINC
47 0C8566 20 SCREW HHFC M6-1.0 X 20 G8.8
48 0C2454 9 SCREW THF M6-1 X 16 N WA Z/JS
49 090283 1 CAP RADIATOR 13 PSI
50 080713 1 BRACKET COOLANT TANK
51 055934M 1 CLAMP STL/VNL .75 X .343 Z
52 0A5259A 2 HOSE 2"ID X 3.0"LG
53 039253 2 SCREW HHC M8-1.25 X 20 C8.8
54 0G9595 1 BRACKET RESERVOIR MOUNTING
55 049820 5 NUT HEX LOCK M8-1.25 NY INS
56 0H30880ST03 1 BRACKET TENSIONER SPRING
57 099502 2 CLAMP HOSE #24 B1.06-2.00
58 0C8165 2 NUT HEX LOCK 5/16-24 NY INS
59 029032 1 HOSE 9/32 ID (36”LG)
60 0G3762 1 CAC 504W X 152H X 50D 2.4L G2
61 0G1285C 8 CLAMP CNST TENSION 1.75-2.625
62 071296A 2 HOSE 2"ID X 3.0"LG
63 0G3985 1 TUBE CAC IN G2 TURBO
64 0G3989 1 TUBE CAC OUT G2 TURBO
65 0C2454B 4 SCREW THF M6-1 X 30 N WA DELTA
66 0G9332A 1 OIL LINE REMOTE ENG/COOLER
67 0C4975 1 ADAPTOR 1/2 NPT X 37JIC 3/4-16
68 0G3990 1 COOLER OIL 2.4L G2 TURBO
69 0C4973D 2 ADAPTER 90D JIC37 1/2NPT X 3/4
(4) 70 0H2844 2 (REF) BEARING SLEEVE 1/2/ X 3/4 X 1
71 0G53150AL0R 1 SPACER CPL COOLING FAN 1/8"
72 0G3986 2 MOUNT OIL COOLER 2.4L G2
73 0G9910 1 ADAPTER 45D JIC37 1/2NPT X 3/4
74 0G9331 1 MOUNT REMOTE OIL FILTER 2.4 G2
(3) 75 0G9333 1 NIPPLE-OIL FILTER
76 0A45310244 1 FILTER 1.5L/2.4L G2 OIL
77 043107 3 SCREW HHC M8-1.25 X 25 C8.8
(5) 78 0H1851 1 ASSY PCB LCL SENSOR (USE WITH I/N 16, P/N
0H1827 ONLY)
79 029333A 9 TIE WRAP UL 7.4” X .19” BLK (NOT SHOWN)
80 0D3700 8 NUT FLANGE M6-1.0 NYLOK
BEARING PRESS NOTE:
APPLY LOCTITE 620 BEARING RETAINMENT
COMPOUND TO BEARING SURFACE ON ITEM 37
PRIOR TO PRESSING ITEM 28 ONTO ITEM 37.
ALSO APPLY LOCTITE 620 BEARING RETAINMENT
COMPOUND TO THE OUTSIDE OF 28 PRIOR TO
INSTALLING ITEM 28 INTO ITEM 38.
(1) APPLY MEDIUM STRENGTH BLUE THREAD
LOCKING FLUID TO THREADS.
(2) INCLUDED WITH I/N 26.
(3) APPLY LOCTITE #266 TO I/N 75 PRIOR TO
ASSEMBLY.
(4) ITEM 70 IS INCLUDED WITH ITEM 1.
(5) USE WITH R-200 CONTROL PANEL ONLY.



EXPLODED VIEW: TURBO 2.4L G2
DRAWING #: 0H3356 GROUP D
APPLICABLE TO:
REVISION: -A- PAGE 1 OF
DATE: 6/22/09
ITEM PART# QTY. DESCRIPTION
1 042574 1 ADAPTER 1/8NPTF TO 1/8 BSPT
2 064094 1 MALE ELBOW 45 #49X3
3 064096B 1 OIL SUPPLY 3LHA(38")
4 0G8690 1 GASKET 2.4L G2
5 0G8692 1 GASKET 2.4L G2
6 0H2811 1 TURBOCHARGER G2 2.4L
7 0A4707B 1 ADAPTER 1/4NPT X M12-1.5
8 0A4707F 1 ADAPTER 1/2NPT X M16-1.5
9 0C4975 1 ADAPTER 1/2 NPT X 37JIC 3/4-16
10 0C4973C 1 ADAPTER 90D JIC37 1/4NPT X 1/2
11 0E5343 4 NUT HEX FL WHIZ M10-1.50
12 0H0457 4 STUD M10-1.5 X 40 G10.9


EXPLODED VIEW: MUFFLER EXH 2.4L G2 TURBO
DRAWING #: 0H3357 GROUP F
APPLICABLE TO:
REVISION: H-5192-B PAGE 1 OF
DATE: 10/12/09
ITEM PART# QTY. DESCRIPTION
1 0G86870ST03 1 BRACKET MUFFLER
2 0G8686 1 BRACKET STIFFENER
3 0G6150 1 MUFFLER 60kW
4 0G0113 1 EXHAUST ELBOW
5 0F2808D 1 EXHAUST PIPE
6 0G0007 1 DIFFUSER EXHAUST WELDMENT
7 0H3371 1 PIPE EXHAUST 2.4L 60kW
8 0H3372 1 UPPER EXHAUST PIPE ASM
9 0G8685 1 STRAP MUFFLER
10 0C2454 4 SCREW THF M6-1 X 16 N WA Z/JS
11 022473 2 WASHER FLAT 1/4-M6 ZINC
12 022097 2 WASHER LOCK M6-1/4
13 049721 2 SCREW HHC M6-1.0 X 35 G8.8 BLK
14 080762 3 BOLT U 3/8-16 X 2.62
15 022241 6 NUT HEX 3/8-16 STEEL
16 036797 1 BOLT U 5/16-18 X 2.25
17 070006 6 WASHER LOCK M8 SS
18 022259 2 NUT HEX 5/16-18 STEEL
19 0A6928 4 SCREW HHC M8-1.25 X 20 SS
20 022237 6 WASHER LOCK 3/8
21 0H1310 1 BOLT U 3/8-16 X 2.30 W/SADDLE
22 0F3794 1 EXHAUST BLANKET 600MM LONG
23 0G3770 1 EXHAUST BLANKET 737MM



EXPLODED VIEW: ENGINE COMMON PARTS 2.4L G2 TURBO 60K
DRAWING #:0H7323 GROUP D
APPLICABLE TO:
REVISION: H-7244-D Page 3 of 4
DATE: 8/10/10
ITEM PART# QTY. DESCRIPTION
1 0H1619 1 ENGINE 2.4L G2 CERTIFIED
2 035472 1 CLAMP HOSE #6 .43-.78
3 0G1738 1 CAP ANTIFREEZE RUBBER 9.5DIA
4 0G0950 1(REF) GASKET INTAKE MANIFOLD G2
5 0G8488 1 MANIFOLD INTAKE (MACHINED)
6 022129 30 WASHER LOCK M8-5/16
7 058306 7 SCREW SHC M8-1.25 X 25
8 0E0502 1 TEMPERATURE SENDER, DELPHI
9 026073A 3 PLUG STD PIPE 1/4 STEEL SQ HD
10 045771 3 NUT HEX M8-1.25 G8 CLEAR ZINC
11 057772 1 WASHER NYLON .565
12 069860E 1 HOSE DRAIN ASSY 28"
13 0C7649 1 CLAMP HOSE .38-.87
14 043790A 1 BARBED EL 90 3/8NPT X 3/8 VS
15 057765 1 ADAPTER M14-1.50 X 3/8 NPT
16 049821 3 SCREW SHC M8-1.25 X 30 C12.9
17 0D2244M 1 MAGNETIC PICKUP
18 0G7461 1 MOTOR STARTER
19 0F9583 1 SPACER 2.4L G2 FLEX PLATE
20 0F9420 1 ADAPTER ENGINE
21 0F9965E 1 FLEX PLATE 2 POLE 2.4L G2
22 063076 7 WASHER FLAT .531 ID X 1.062 OD
23 0G1394 7 SCREW HHC M12-1.25 X 20 C10.9
24 052830 2 SCREW HHC M10-1.25 X 45 G8.8
25 025507 5 WASHER SHAKEPROOF EXT 7/16 STL
26 062963 3 SCREW HHC M10-1.25 X 30 G8.8
27 077043H 2 CONDUIT FLEX .25"ID
28 0G3995 1 SHIELD INNER HEAT 2.4L TURBO
29 090388 7 SCREW HHTT M6-1.0 X 12 ZINC
30 0D3701 1 PLATE "HOT"
31 0F0710 2 RIVET POP .125 X 0.337 STEEL
32 0H6859H 1 ASSY DIPSTICK W/TEXT GTH-530
33 0G8427A 1 ASSY DIPSTICK TUBE 2.4 G2
34 052213 3 SCREW HHC M10-1.25 X 20 C8.8
35 046526 6 WASHER LOCK M10
36 022131 5 WASHER FLAT 3/8-M10 ZINC
37 0G3823 2 O-RING SIZE 9.0MM X 2.0MM NITR
38 0G7902 1 TUBE TURBO OIL RETURN G2 2.4L
39 0H2574 1 CONDUIT THERMAL FLEX 13MM ID
40 047411 1 SCREW HHC M6-1.0 X 16 C8.8
41 022097 1 WASHER LOCK M6-1/4
42 022473 1 WASHER FLAT 1/4-M6 ZINC
43 0G39910ST03 1 BRACKET EXH MANIFOLD 2.4 TURBO
44 0G4000 1 HEAT SHIELD TURBO 2.4L
45 0G39970ST03 1 BRACKET HEAT SHIELD 2.4L
46 042907 4 SCREW HHC M8-1.25 X 16 C8.8
47(1) 0G0951 1(REF) GASKET EXHAUST MANIFOLD
48 0E4507 1 SCREW HHC M10-1.5 X 120 C8.8
49(2) 0E9868A 1 ALTERNATOR DC W/OUT PULLEY
50 0G0788 1 PULLEY DC ALTERNATOR
51 0F3217 1 SPACER DC ALTERNATOR PULLEY
52 0A8258 9 SCREW HHC M8-1.25 X 25 G10.9
53 022145 7 WASHER FLAT 5/16-M8 ZINC
54 039414 4 SCREW HHC M8-1.25 X 35 G8.8
55 0G0149 1 SCREW SHC M14-1.5 X 35 G10.9
56 0F9501 1 ADAPTER 2.4L CRANKSHAFT MACH
57(1) 0G0952 1(REF) POLY V-BELT G2
58 0G1472A 1 CAM SENSOR PIN ASSY
59 0G1477 1(REF) COVER CAM GEAR G2 REWORKED
60 0G8852 1 BRACKET ASM-2.4L COIL G2
61(1) 052265 1(REF) SCREW HHC M8-1.25 X 65 C8.8
62(1) 052203 1(REF) SCREW HHC M8-1.25 X 70 G8.8
63 046525 2 NUT HEX M10-1.25 G8 YEL CHR
64 0G3921A 1 VR SENSOR ASSY 3/8-24 LOW SENS
65 029333A 3 TIE WRAP UL 7.4"X .19" BLK

EXPLODED VIEW: ENGINE COMMON PARTS 2.4L G2 TURBO 60K
DRAWING #:0H7323 GROUP D
APPLICABLE TO:
REVISION: H-7244-D Page 4 of 4
DATE: 8/10/10
ITEM PART# QTY. DESCRIPTION
66 0G8853 4 COIL-2.4L G2 IGNITION
67 023897 8 WASHER FLAT #10 ZINC
68 022152 8 WASHER LOCK #10
69 034413 8 SCREW HHM #10-32 X 1-1/4
70 0G9350 1 O-RING 2.5"X 2.75"X 1/8" VITON
71 0G9329 1 ADAPTOR OIL FILTER 2.4L G2
72 0H7435 1 HARN LOW OIL PRESS SWITCH ASSY
73 0G9910 2 ADAPTOR 45D JIC37 1/2NPT X ¾
74 0G9349 1 O-RING 1" X 1.25" X 1/8" VITON
75 0G9330 1 NUT OIL FILTER ADAPTOR 2.4L G2
76 084750 4 PLUG SPARK
77 0G4003 1 SHIELD HEAT IGNITION COIL 2.4L
78 0G8854 1 SPARK PLUG WIRE SET 2.4L G2 IG
79 0H1432B 1 MANIFOLD EXH 60K G2 TURBO (MA)
80 (1) 0A45310244 1(REF) FILTER 1.5L/2.4L G2 OIL (NOT SHOWN)
81 0H6689 1 HARN ENG G2.4L G2 NEXUS (NOT SHOWN)
82 045772 1 NUT HEX M10-1.5 G8 YEL CHR
(1) SUPPLIED WITH ENGINE
(2) APPLY MEDIUM STRENGTH BLUE THREAD LOCKING FLUID TO THE THREADS


1 057147 1 HOSE 3/4 ID LPG & NG (43”LG)
2 065908 1 FLANGE FUEL INLET
3 039130 1 NIPPLE CLOSE 1.25 NPT X 1.625
4 030131 1 ELBOW 90D 1-1/4 NPT
5 088963 1 NIPPLE PIPE 1.25 NPT X 5.5 BL IRN
6 026915 2 NIPPLE CLOSE 3/4 X 1.375
7 0A8064 2 BSHG RDCR HEX 1-1/4-3/4
8 064346 1 PIPE TEE 1-1/4 NPT
9 0G9239C 1 REG ASSY 2.4L 60KW NG CPL
10 046580 4 SCREW SHC M6-1.0 X 45 C12.9
11 043107 2 SCREW HHC M8-1.25 X 25 C8.8
12 022131 4 WASHER FLAT 3/8-M10 ZINC
13 022129 2 WASHER LOCK M8-5/16
14 045771 2 NUT HEX M8-1.25 G8 CLEAR ZINC
15 050279 1 DECAL FUEL INLET NG
16 0D1509 1 DECAL INLET PRESSURE
17 057147 1 HOSE 3/4 ID LPG & NG (43” LG)
18 0H7438 1 HARN FUEL JUMPER DUAL REG
19 057823 4 CLAMP HOSE #10 .56-1.06
20 0E4394 1 ACTUATOR BOSCH 40 GOVERNOR
21 0E6586 1 GASKET BOSCH 32
22 086133C 1 CLAMP HI TORQUE 1.75 - 2.625
23 0F3857 1 REDUCER RUBBER 3.0"-2.00"
24 086133E 1 CLAMP HI TORQUE 2.75 - 3.625
25 0F3885 1 MIXER 40/60MM ACTUATOR ASSY
26 0G3167 2 O-RING 2-3/4 X 3/32 X 2-15/16
27 0F3691 1 VENTURI THROTTLE 32MM
28 022097 4 WASHER LOCK M6-1/4


1 057147 1 HOSE 3/4 ID LPG & NG (45”LG)
2 075580 1 FLANGE, FUEL INLET
3 026915 1 NIPPLE CLOSE 3/4 X 1.375
4 026812 2 ELBOW 90D 3/4NPT
5 0F8379 1 NIPPLE PIPE 3/4 NPT X 7
6 026915 2 NIPPLE CLOSE 3/4 X 1.375
7 022097 4 WASHER LOCK M6-1/4
8 0F3691 1 VENTURI THROTTLE 32MM
9 0G9189C 1 REG ASSY 2.4L 60KW LPV CPL
10 046580 4 SCREW SHC M6-1.0 X 45 C12.9
11 043107 2 SCREW HHC M8-1.25 X 25 C8.8
12 022131 4 WASHER FLAT 3/8-M10 ZINC
13 022129 2 WASHER LOCK M8-5/16
14 045771 2 NUT HEX M8-1.25 G8 CLEAR ZINC
15 050280 1 DECAL FUEL INLET LPG
16 0D1509 1 DECAL INLET PRESSURE
17 057147 1 HOSE 3/4 ID LPG & NG (41” LG)
18 0H7436 1 HARN FUEL JUMPER SINGLE REG
19 057823 4 CLAMP HOSE #10 .56-1.06
20 0E4394 1 ACTUATOR BOSCH 40 GOVERNOR
21 0E6586 1 GASKET BOSCH 32
22 086133C 1 CLAMP HI TORQUE 1.75 - 2.625
23 0F3857 1 REDUCER RUBBER 3.0"-2.00"
24 086133E 1 CLAMP HI TORQUE 2.75 - 3.625
25 0F3885 1 MIXER 40/60MM ACTUATOR ASSY
26 0G3167 2 O-RING 2-3/4 X 3/32 X 2-15/16


(2) 1 0G80180AL0R 1 REAR WRAP C2 G2 60KW
2 0C2454 58 SCREW THF M6-1 X 16 N WA Z/JS
(2) 3 0F58490AL0R 2 DOOR C2
4 087233 2 RIVET POP .1875 X .450 SS
5 0E3257 4 SCREW TH-FRM M6 W/CAP SHKPRF W
(2) 6 0F58520AL0R 2 DUCT DSCHRG LH&RH
(2) 7 0F98330AL0R 2 FRONT CORNERS C2
(2) 8 0F58510AL0R 1 DUCT DISCHARGE C2
9 049813 2 NUT HEX M6 X 1.0 G8 YEL CHR
(1) 10 077992 21 NUT HEX LOCK M6-1.0 SS NY INS
(2) 11 0F98350AL0R 1 ROOF C2
12 0F2786 2 SLITTER C4
13 0F2785 1 SPLITTER LOWER C4
14 0F3364 1 SPLITTER STINGER C2
15 0F4880 2 SUPPORT SPLITTER LH C2
16 0F5049 2 TAB PULL
17 0F4487A 1 ASSEMBLY COVER ACCESS
18 022473 3 WASHER FLAT 1/4-M6 ZINC
19 022097 1 WASHER LOCK M6-1/4
20 022127 1 NUT HEX 1/4-20 STEEL
21 0F3072 10 INSULATION RETAINMENT HANGER
22 078115 26 WASHER SELF LOCKING DOME #4-40
23 0G5892 2 INSULATION DOOR C2
24 0G5892A 1 INSULATION ROOF TOP
25 0F5048D 2 VISE-ACTION LATCH SLOTTED CIR
26 0E5968 1 GASKET EXTRUDED TRIM (328” LG)
27 0G5892D 2 INSULATION SPLITTER
28 0G5892C 2 INSULATION SPLITTER
29 0F4051C 2 INSULATION DUCT
30 0F3890B 4 RETAINER INSULATION (820)
31 0F4051B 2 INSULATION DUCT SIDES
32 0F3890 4 RETAINER INSULATION (450)
33 078115A 6 WASHER SELF LOCKING DOME #8-32
34 0G5892E 1 INSULATION LOWER SPLITTER
35 042568 2 SCREW HHC M6-1.0 X 20 G8.8
36 0912970094 2 ASSY WIRE 14 AWG 34.8" GRN/YEL
37 022447 2 WASHER SHAKEPROOF INT 1/4
38 0G9473 1 DEFLECTOR INTAKE 2.4L G2 TURBO
39 0F8869D 1 KEY VISE-ACTION LATCH SLOT CIR
40 052250 1 TAPE FOAM 1X1 (17.25”LG)
41 066760 1 STRIP SEALANT 1/8 X 1 (44.52”LG)
42 0E5298L 1 FOAM 300 X 300 THERMAL ACO
43 0H1208A 1 RF COVER PLATE-PLASTIC-BISQUE
0H1208B 1 RF COVER PLATE-PLASTIC-GREY
(1) ALUMINUM ENCLOSURE NOTE: ALL ENCLOSURE PANELS THAT FASTEN TO THE BASE FRAME MUST BE
SECURED USING ITEM 2 & 5 THREAD FORMING FASTENER AND I/N 10 LOCK NUT. LOCK NUT IS TO BE INSTALLED
AFTER THREAD FORMING FASTENER HAS PENETRATED THROUGH EXTRUSIONS IN ENCLOSURE PANELS. ALL
ROOF PANELS ARE TO BE SECURED IN THE SAME MANNER.
(2) SHEET METAL PARTS LISTED IN THE BOM TABLE ARE REPRESENTING GENERIC PARTS (NO COLOR).
• MANUFACTURING: FOR CORRECT MATERIAL AND COLOR REFER TO AS400 BOM.
• CUSTOMER: FOR CORRECT MATERIAL AND COLOR OF REPLACEMENT PARTS REFER TO
“REPLACEMENT SHEET METAL PARTS ORDERING GUIDE-0H7169” INCLUDED IN THE MANUAL OR
AVAILABLE ON THE GENERAC WEBSITE.















BackPg001 Rev. A 04/07