143 2 Zoeller M53 Product Instructions User Manual
151 2 Zoeller M57 Product Instructions 151_2_Zoeller M57 Product Instructions
153 2 Zoeller 267 Instructions 153_2_Zoeller 267 Instructions
154 2 Zoeller M137 Product Instructions 154_2_Zoeller M137 Product Instructions
155 2 Zoeller 267 Instructions 155_2_Zoeller 267 Instructions
157 3 Zoeller 264 Series Instructions 157_3_Zoeller 264 Series Instructions
User Manual: Pump 143 2 Zoeller M53 Product Instructions
Open the PDF directly: View PDF
.
Page Count: 12

1
© Copyright 2011 Zoeller Co. All rights reserved.
INSTALLATION INSTRUCTIONS
RECOMMENDED MODELS
P/N 151797
Notice to installing contractor: Instructions must remain with installation.
SECTION: 6.10.002
FM2676
1011
Supersedes
New
PREINSTALLATION CHECKLIST - ALL INSTALLATIONS
DATE INSTALLED:
MODEL NUMBER:
1. Inspect your pump. Occasionally, products are damaged during shipment. If the unit is damaged, contact your dealer before using. DO NOT remove the test plugs in the cover nor the motor housing.
2. Carefully read the literature provided to familiarize yourself with specic details regarding installation and use. These materials should be retained for future reference.
NOTICE: VENT HOLE FOR
CHECK VALVE
SEE #3 IN CAUTION SECTION
BELOW AND #4 ON PAGE 3
EFFLUENT*/SUMP/DEWATERING SEWAGE
49 / 53 / 57 Series, 98 Series 264 Series
137 Series, 151 / 152 / 153 Series 266 / 267 / 268 Series
SEE BELOW FOR
LIST OF CAUTIONS
SEE BELOW FOR
LIST OF WARNINGS
1. Make certain that the receptacle is within the reach of the pump’s power supply cord. DO NOT
USE AN EXTENSION CORD. Extension cords that are too long or too light do not deliver sufcient
voltage to the pump motor. But, more important, they could present a safety hazard if the insulation
were to become damaged or the connection end were to fall into the sump.
2. Make sure the pump electrical supply circuit is equipped with fuses or circuit breakers of
proper capacity. A separate branch circuit is recommended, sized according to the “National
Electrical Code” for the current shown on the pump nameplate.
3. Testing for ground. As a safety measure, each electrical outlet should be checked for ground
using an Underwriters Laboratory Listed circuit analyzer which will indicate if the power, neutral and
ground wires are correctly connected to your outlet. If they are not, call a qualied licensed electrician.
4. For Added Safety. Pumping and other equipment with a 3-prong grounded plug must be connected
to a 3-prong grounded receptacle. For added safety the receptacle may be protected with a ground-
fault circuit interrupter. When a pump needs to be connected in a watertight junction box, the plug
can be removed and spliced to the supply cable with proper grounding. For added safety this circuit
may be protected by a ground-fault circuit interrupter. The complete installation must comply with
the National Electrical Code and all applicable local codes and ordinances.
5. FOR YOUR PROTECTION, ALWAYS DISCONNECT PUMP FROM ITS POWER SOURCE BEFORE
HANDLING. Single phase pumps are supplied with a 3-prong grounded plug to help protect you
against the possibility of electrical shock. DO NOT UNDER ANY CIRCUMSTANCES REMOVE
THE GROUND PIN. The 3-prong plug must be inserted into a mating 3-prong grounded receptacle.
If the installation does not have such a receptacle, it must be changed to the proper type, wired
and grounded in accordance with the National Electrical Code and all applicable local codes and
ordinances. Three phase pumps require motor starting devices with motor overload protection. See
FM0486 for duplex installations.
6. The tank is to be vented in accordance with local plumbing code. Pumps must be installed in
accordance with the National Electrical Code and all applicable local codes and ordinances. Pumps
are not to be installed in locations classied as hazardous in accordance with National Electrical
Code, ANSI/NFPA 70.
7. “Risk of electrical shock” Do not remove power supply cord and strain relief or connect conduit
directly to the pump.
8. Installation and servicing of electrical circuits and hardware should be performed by a qualied
licensed electrician.
9. Pump installation and servicing should be performed by a qualied person.
10. Risk of electric shock - These pumps have not been investigated for use in swimming pool and
marine areas.
11. According to the state of California (Prop 65), this product contains chemicals known to the state
of California to cause cancer and birth defects or other reproductive harm.
1. Check to be sure your power source is capable of handling the voltage requirements of the motor,
as indicated on the pump name plate.
2. The installation of automatic pumps with variable level oat switches or nonautomatic pumps using
auxiliary variable level oat switches is the responsibility of the installing party and care should be
taken that the tethered oat switch will not hang up on the pump apparatus or pit peculiarities and
is secured so that the pump will shut off. It is recommended to use rigid piping and ttings and the
pit be 18" or larger in diameter.
3. Information - vent hole purpose. It is necessary that all submersible sump, efuent, and sewage
pumps capable of handling various sizes of solid waste be of the bottom intake design to reduce
clogging and seal failures. If a check valve is incorporated in the installation, a vent hole (approx.
3/16") must be drilled in the discharge pipe below the check valve and pit cover to purge the unit
of trapped air. Trapped air is caused by agitation and/or a dry basin. Vent hole should be checked
periodically for clogging. The 53 / 57, and 98 Series pumps have a vent located in the pump housing
opposite the oat, adjacent to a housing lug, but an additional vent hole is recommended. The vent
hole on a High Head application may cause too much turbulence. You may not want to drill one.
If you choose not to drill a vent hole, be sure the pump case and impeller is covered with liquid
before connecting the pipe to the check valve and no inlet carries air to the pump intake. NOTE:
THE HOLE MUST ALSO BE BELOW THE BASIN COVER AND CLEANED PERIODICALLY. Water
stream will be visible from this hole during pump run periods.
4. Pump should be checked frequently for debris and/or build up which may interfere with the oat “on”
or “off” position. Repair and service should be performed by Zoeller Pump Company Authorized
Service Station only.
5. Dewatering and efuent sump pumps are not designed for use in pits handling raw sewage.
6. Maximum operating temperature for standard model pumps must not exceed 130°F (54°C).
7. Pump models 266, 267, 268, and 137 must be operated in an upright position. Do not attempt to
start pump when tilted or laying on its side.
8. Do not operate a pump in an application where the Total Dynamic Head is less than the minimum
Total Dynamic Head listed on the Pump Performance Curves.
REFER TO WARRANTY ON PAGE 2.
NOTE: Pumps with the “UL” mark and pumps with the “US” mark are tested to UL Standard UL778.
CSA Certied pumps are certied to CSA Standard C22.2 No. 108.
Product information presented
here reects conditions at time
of publication. Consult factory
regarding discrepancies or
inconsistencies.
MAIL TO: P.O. BOX 16347 • Louisville, KY 40256-0347
SHIP TO: 3649 Cane Run Road • Louisville, KY 40211-1961
(502) 778-2731 • 1 (800) 928-PUMP • FAX (502) 774-3624
visit our web site:
www.zoeller.com
®
Your Peace of Mind is Our Top Priority ®

2
© Copyright 2011 Zoeller Co. All rights reserved.
we do not authorize any representative or other person to assume for us any other
liability in connection with our products.
Contact Manufacturer at, 3649 Cane Run Road, Louisville, Kentucky 40211, Attention:
Customer Service Department to obtain any needed repair or replacement of part(s)
or additional information pertaining to our warranty.
MANUFACTURER EXPRESSLY DISCLAIMS LIABILITY FOR SPECIAL,
CONSEQUENTIAL OR INCIDENTAL DAMAGES OR BREACH OF EXPRESSED
OR IMPLIED WARRANTY; AND ANY IMPLIED WARRANTY OF FITNESS FOR A
PARTICULAR PURPOSE AND OF MERCHANTABILITY SHALL BE LIMITED TO
THE DURATION OF THE EXPRESSED WARRANTY.
Some states do not allow limitations on the duration of an implied warranty, so the
above limitation may not apply to you. Some states do not allow the exclusion or
limitation of incidental or consequential damages, so the above limitation or exclusion
may not apply to you.
This warranty gives you specic legal rights and you may also have other rights
which vary from state to state.
Limited Warranty
Manufacturer warrants, to the purchaser and subsequent owner during the warranty
period, every new product to be free from defects in material and workmanship under
normal use and service, when properly used and maintained, for a period of three
years from the date of original manufacture. Parts that fail within the warranty period,
that inspections determine to be defective in material or workmanship, will be repaired,
replaced or remanufactured at Manufacturer's option, provided however, that by so
doing we will not be obligated to replace an entire assembly, the entire mechanism
or the complete unit. No allowance will be made for shipping charges, damages,
labor or other charges that may occur due to product failure, repair or replacement.
This warranty does not apply to and there shall be no warranty for any material or
product that has been disassembled without prior approval of Manufacturer, subjected
to misuse, misapplication, neglect, alteration, accident or act of God; that has not
been installed, operated or maintained in accordance with Manufacturer's installation
instructions; that has been exposed to outside substances including but not limited to
the following: sand, gravel, cement, mud, tar, hydrocarbons, hydrocarbon derivatives
(oil, gasoline, solvents, etc.), or other abrasive or corrosive substances, wash towels
or feminine sanitary products, etc. in all pumping applications. The warranty set out
in the paragraph above is in lieu of all other warranties expressed or implied; and
ELECTRICAL PRECAUTIONS- Before servicing a pump, always shut off the main power breaker and then unplug the pump - making
sure you are wearing insulated protective sole shoes and not standing in water. Under ooded conditions, contact your local electric company or a
qualied licensed electrician for disconnecting electrical service prior to pump removal.
Submersible pumps contain oils which becomes pressurized and hot under operating conditions - allow 2½ hours after disconnecting before
attempting service.
If the above checklist does not uncover the problem, consult the factory - Do not attempt to service or otherwise disassemble pump. Service must be
performed by Zoeller Authorized Service Stations. Go to www.zoellerpumps.com/servicestations to nd the Authorized Service Station in your area.
SERVICE CHECKLIST
EASY DO’S & DON'T’S FOR INSTALLING A SUMP PUMP
1. DO read thoroughly all installation material provided with the pump.
2. DO inspect pump for any visible damage caused by shipping. Contact
dealer if pump appears to be damaged.
3. DO clean all debris from the sump. Be sure that the pump will have a hard,
at surface beneath it. DO NOT install on sand, gravel or dirt.
4. DO be sure that the sump is large enough to allow proper clearance for the
level control switch(es) to operate properly.
5. DO Always Disconnect Pump From Power Source Before Handling.
DO always connect to a separately protected and properly grounded
circuit.
DO NOT ever cut, splice, or damage power cord (Only splice in a watertight
junction box).
DO NOT carry or lift pump by its power cord.
DO NOT use an extension cord with a sump pump.
6. DO install a check valve and a union in the discharge line.
DO NOT use a discharge pipe smaller than the pump discharge.
7. DO NOT use a sump pump as a trench or excavation pump, or for pumping
sewage, gasoline, or other hazardous liquids.
8. DO test pump immediately after installation to be sure that the system is
working properly.
9. DO cover sump with an adequate sump cover.
10. DO review all applicable local and national codes and verify that the installation
conforms to each of them.
11. DO consult manufacturer for clarications or questions.
12. DO
consider a two pump system with an alarm where an installation may become
overloaded or primary pump failure would result in property damages.
13. DO consider a D.C. Backup System where a sump or dewatering pump
is necessary for the prevention of property damages from ooding due
to A.C. power disruptions, mechanical or electrical problems or system
overloading.
14. DO inspect and test system for proper operations at least every three
months.
CONDITION COMMON CAUSES
A. Pump will not start or run. Check fuse, low voltage, overload open, open or incorrect wiring, open switch, impeller or seal bound mechanically,
defective capacitor or relay when used, motor or wiring shorted. Float assembly held down. Switch defective,
damaged, or out of adjustment.
B. Motor overheats and trips overload
or blows fuse. Incorrect voltage, negative head (discharge open lower than normal) impeller or seal bound mechanically, defec-
tive capacitor or relay, motor shorted.
C. Pump starts and stops too often. Float tight on rod, check valve stuck or none installed in long distance line, overload open, level switch(s) defec-
tive, sump pit too small.
D. Pump will not shut off. Debris under oat assembly, oat or oat rod bound by pit sides or other, switch defective, damaged or out of
adjustment.
E. Pump operates but delivers little or
no water. Check strainer housing, discharge pipe, or if check valve is used vent hole must be clear. Discharge head
exceeds pump capacity. Low or incorrect voltage. Incorrect motor rotation. Capacitor defective. Incoming water
containing air or causing air to enter pumping chamber.
F. Drop in head and/or capacity after
a period of use. Increased pipe friction, clogged line or check valve. Abrasive material and adverse chemicals could possibly
deteriorate impeller and pump housing. Check line. Remove base and inspect.
In those instances where damages are incurred as a result of an alleged pump failure,
the Homeowner must retain possession of the pump for investigation purposes.

3
© Copyright 2011 Zoeller Co. All rights reserved.
On some installations it may be desirable
to install an independent hanger for the
level control switches to avoid possible
hang ups on the pumps, piping, valves,
etc. Float hangers are available from
Zoeller Company on Catalog Sheet
FM0526 or can be fabricated from stan-
dard pipe and ttings.
SUGGESTED METHODS OF FLOAT INSTALLATION
TYPICAL FLOAT HANGER ON CONCRETE PITS
OR SEPTIC TANK RISERS
TYPICAL FLOAT HANGER ON STEEL COVER PITS
ACCESS COVER
STANDARD PIPE
FLANGE
PVC OR LIGHT WEIGHT
STAINLESS STEEL PIPE
PEAGRAVEL
TYPICAL FLOAT HANGER ON CONCRETE PITS
OR SEPTIC TANK RISERS
10-1457 FLOAT TREE
WITH 3 FLOATS SHOWN
SK1217 SK1218
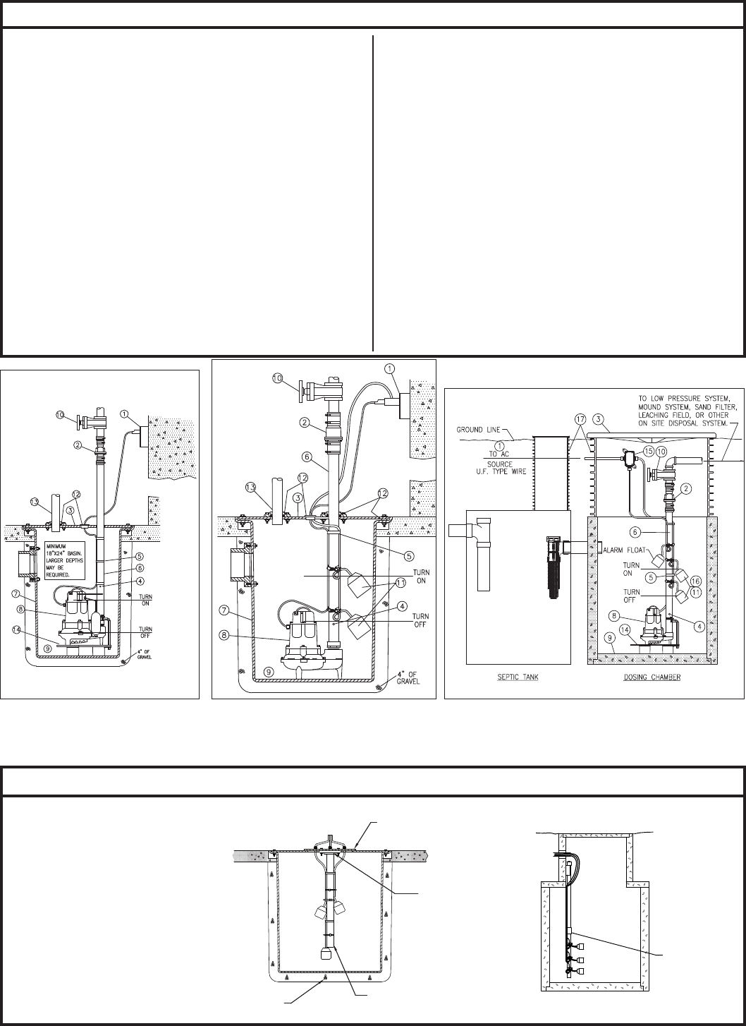
RECOMMENDED INSTALLATION FOR ALL APPLICATIONS
All installations must comply with all applicable electrical and plumbing codes, including, but not limited to, National Electrical Code, local, regional, and/or state plumbing
codes, etc. Not intended for use in hazardous locations.
(1) Electrical wiring and protection must be in accordance with National
Electrical Code and any other applicable state and local electrical
requirements.
(2) Install proper Zoeller unicheck (combination union and check valve),
preferably just above the basin to allow easy removal of the pump for
cleaning or repair. On sewage, efuent or dewatering, if high head or
below cover installation is required use 30-0164 on 1½" pipe, 30-0152
on 2" pipe and 30-0160 on 3" pipe. See (4) below.
(3) All installations require a basin cover to prevent debris from falling into
the basin and to prevent accidental injury.
(4) When a Unicheck is installed, drill a 3/16" dia. hole in the discharge
pipe even with the top of the pump. NOTE: THE HOLE MUST ALSO
BE BELOW THE BASIN COVER AND CLEANED PERIODICALLY.
(High Head unit see #3 under “Caution” on front page). Water stream
will be visible from this hole during pump run periods.
(5) Securely tape or clamp power cord to discharge pipe, clear of the oat
mechanism(s).
(6) Use full-size discharge pipe.
(7) Basin must be in accordance with applicable codes and
specications.
(8) Pump must be level and oat mechanism(s) clear of sides of basin
before starting pump.
(9) Basin must be clean and free of debris after installation.
(10) Gate Valve or Ball Valve to be supplied by installer and installed
according to any and all codes.
(11) Locate oat switches as shown in sketches. The best place for the
“off” point is above the motor housing and positioned 180° from the
inlet. Never put “off” point below discharge on pump (Sewage &
Efuent only). NOTE: FOR AUTOMATIC PUMPS, USE
DEWATERING INSTALLATION SKETCH.
(12) Gas tight seals required to contain gases and odors.
(13) Vent gases and odors to the atmosphere through vent pipe (Sewage
& Dewatering only).
(14) Install Zoeller Pump Stand (Model 10-2421) under pump to provide a
settling basin. (Efuent & Dewatering only.)
For Efuent Only:
(15) Wire pump to power through a Zoeller watertight junction box or
watertight splice. NOTE: Watertight enclosure is a must in damp
areas. See No. 8 on front page of FM0732.
(16) Refer to SSPMA Efuent Sizing Manual for determining “on” - “off”
switches.
(17) Septic tank risers must be used for easy pump and lter access.
NOTE: Double seal pumps offer extra protection from damage caused by
seal failure.
TYPICAL SEWAGE INSTALLATION
SK290
Always refer to
FM0551 and/or
SSPMA recom-
mended sewage
pump installation
and maintenance.
TYPICAL EFFLUENT INSTALLATION
SK291
WW1
EFFLUENT
FILTER
See FM0531,
FM0732 & FM1420
for alarms, controls
& junction boxes
TYPICAL DEWATERING INSTALLATION
SK292
See FM0531, FM0732 & FM1420 for alarms,
controls & junction boxes

4
© Copyright 2011 Zoeller Co. All rights reserved.
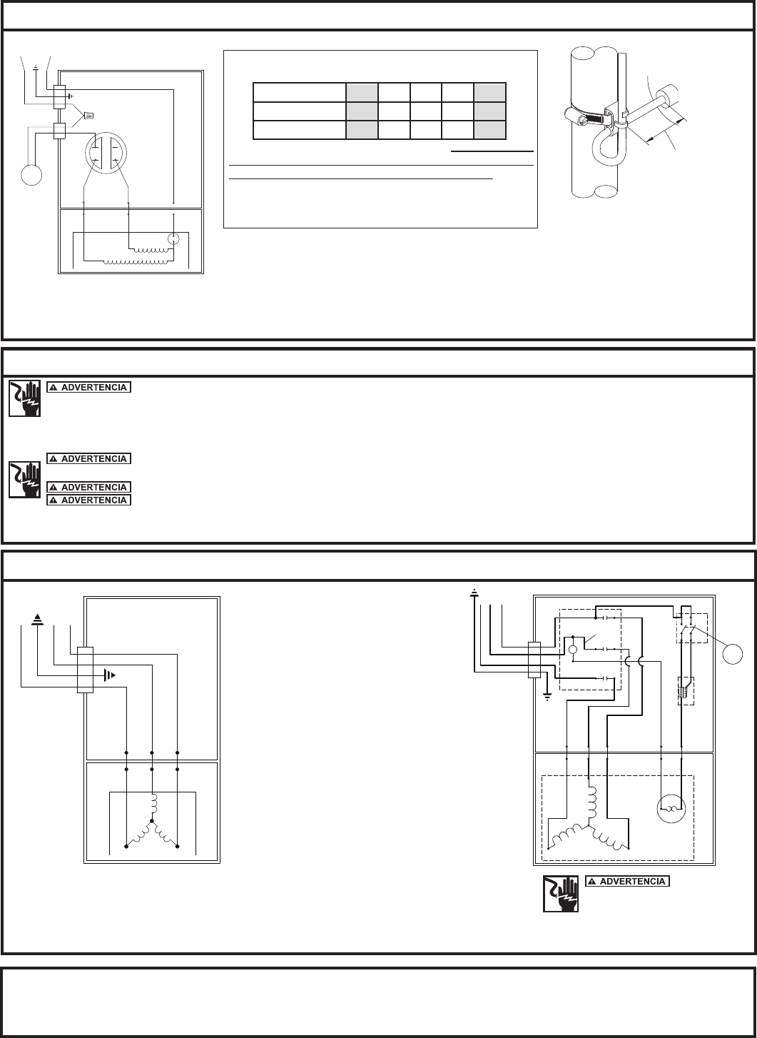
WD & WH MODEL INSTALLATION
WIRING DIAGRAM FOR MODELS
WD - 230V, 1 Ph, 60 Hz.
WH - 200/208V, 1 Ph, 60 Hz.
Models WD & WH are fully automatic. A oat switch is included and
factory wired in the pump circuit to provide automatic operation
once the oat switch is secured properly to the outlet pipe. Use the
diagram above to secure the oat switch properly and obtain the
proper tether to customize the on-off cycle to each application.
Determining Pumping Range
in Inches (1 inch - 2.5 cm)
Tether Length 5 10 15 20 22
Pumping Range 9 13.5 18 22 24
max.
Use only as a guide. Due to weight of
cable, pumping range above horizontal
is not equal to pumping range below
horizontal. Ranges are based on testing in
nonturbulent conditions. Range may vary
due to water temperature and cord shape.
As tether length increases, so does the
variance of the pumping range.
min.
START
RUN
BLUE
MOTOR
(WHITE) RED
(BROWN)
O.L.
YELLOW
(BLACK)
SWITCH
FLOAT
BLACK
BLACK
WHITE
CAPACITOR
BLUE
(1) (2)
RED
RUN
WHITE
GREEN
L1 L2
(3)
011835 Note: Failure to keep within proper tether limits
may prevent reliable switch operation.
Note: Cable must be mounted in horizontal
position.
22" MAX.
5" MIN.
20 AMP SWITCH (WD & WH MODELS)
SK305
THREE PHASE WIRING INSTRUCTIONS
FOR YOUR PROTECTION, ALWAYS
DISCONNECT PUMP FROM ITS POWER SOURCE
BEFORE HANDLING.
To automatically operate a nonautomatic three phase pump, a
control panel is required. Follow the instructions provided with the
panel to wire the system. For automatic three phase pumps see
automatic 3 phase wiring diagram located to the far right.
Before installing a pump, check the pump rotation to ensure that
wiring has been connected properly to power source, and that
the green lead of power cord (See wiring diagram), is connected
to a valid ground. Momentarily energize the pump, observing the
directions of kick back due to starting torque. Rotation is correct if
kick back is in the opposite direction of rotation arrow on the pump
casing. If rotation is not correct, switching of any two power leads
other than ground, should provide the proper rotation.
All three phase pumps require motor starting devices with motor
overload protection. See FM0486 for duplex installations. Pumps
must be installed in accordance with the National Electrical Code
and all applicable local codes and ordinances. Pumps are not to
be installed in locations classied as hazardous in accordance
with National Electrical Code, ANSI/NFPA 70.
NONAUTOMATIC
3 PHASE AUTOMATIC
3 PHASE
MOTOR
(3)
BLUE RED
BLACK
GREEN
L1 L2
006848
(1) (2)
YELLOW
L3
WHITE
RED
013071
SINGLE PHASE WIRING INSTRUCTIONS
FOR YOUR PROTECTION, ALWAYS DISCONNECT PUMP FROM ITS POWER SOURCE BEFORE HANDLING. Single phase
pumps are supplied with a 3-prong grounded plug to help protect you against the possibility of electrical shock. DO NOT UNDER ANY CIRCUMSTANCES
REMOVE THE GROUND PIN. The 3-prong plug must be inserted into a mating 3-prong grounded receptacle. If the installation does not have such
a receptacle, it must be changed to the proper type, wired and grounded in accordance with the National Electrical Code and all applicable local codes
and ordinances. “Risk of electrical shock” Do not remove power supply cord and strain relief or connect conduit directly to the pump.
Installation and checking of electrical circuits and hardware should be performed by a qualied licensed electrician.
Units supplied without a plug (single and three phase) and single phase nonautomatic units with a 20 amp plug must have a motor
control and liquid level control provided at time of installation. The control device should have suitable voltage, ampere, frequency, grounding and
horsepower rating for the pump to which it is connected.
IMPORTANT NOTICE: Some insurance policies, both commercial and residential, extend coverage for damages incurred by product failure. You will need to
have possession of the product to support your claim in most cases. Zoeller Pump Co. will exchange the unit or refund the original purchase price once the claim
is settled with the insurer in the case where you need to retain possession of the product to support a damage claim you submit to your insurance company.
006848

5
© Copyright 2011 Zoeller Co. All rights reserved.
Aviso al contratista instalador: Las instrucciones deberán permanecer con la instalación.
FM2676S
EFLUENTES*/SUMIDERO/ACHIQUE AGUAS CLOACALES
49 / 53 / 57 Series, 98 Series 264 Series
137 Series, 151 / 152 / 153
Series
266 / 267 / 268 Series
1. Asegúrese de que el tomacorriente esté al alcance del cable de alimentación eléctrica de la
bomba. NO USE UN CABLE DE EXTENSIÓN. Los cables de extensión que son demasiado
largos o livianos no suministran voltaje suciente al motor de la bomba. Más importante aún,
presentan un peligro a la seguridad si el aislante se daña o el extremo de conexión cae dentro
del sumidero.
2. Asegúrese de que el circuito de alimentación eléctrica de la bomba esté equipado con fu-
sibles o interruptores de circuito de capacidad adecuada. Se recomienda un circuito auxiliar,
del tamaño de acuerdo al “Código Eléctrico Nacional” para la corriente que se muestra en la
etiqueta de nombre de la bomba.
3. Prueba de puesta a tierra. Como medida de seguridad, cada tomacorriente debe vericarse
para puesta a tierra usando un analizador de circuitos aprobado por el Underwriters Laboratory,
el cual indicará si los alambres de energía, neutrales y de puesta a tierra están conectados cor-
rectamente a su tomacorriente. Si no lo están, llame a un técnico electricista calicado.
4. Para mayor seguridad. El equipo de bombeo y otro equipo eléctrico con enchufes de 3 patillas
deben conectarse a un tomacorriente para 3 patillas con puesta a tierra. Para mayor seguridad,
el tomacorriente puede estar protegido con un interruptor de circuito de falla a tierra. Cuando una
bomba necesita ser conectada a una caja de conexión hermética, el enchufe puede ser retirado
y empalmado al cable de alimentación eléctrica propiamente conectado a tierra. Para mayor
seguridad, este circuito puede ser protegido mediante un interruptor de circuito de falla a tierra.
La instalación completa deberá cumplir con el Código Eléctrico Nacional y todas las ordenanzas
y códigos locales aplicables.
5. PARA SU PROTECCIÓN, SIEMPRE DESCONECTE LA BOMBA DE LA FUENTE DE
ALIMENTACIÓN ELÉCTRICA ANTES DE MANIPULARLA. Las bombas monofásicas se
suministran con enchufes de 3 patillas con puesta a tierra para ayudar a protegerle contra la
posibilidad de choque eléctrico. NO RETIRE BAJO NINGUNA CIRCUNSTANCIA LA CLAVIJA
DE PUESTA A TIERRA. Los enchufes de 3 patillas se deben introducir en un tomacorriente para
3 patillas apropiado. Si la instalación no posee un tomacorriente de este tipo, se debe cambiar
por uno apropiado, cableado y con puesta a tierra de acuerdo al Código Eléctrico Nacional y a
todas las ordenanzas y códigos locales aplicables. Las bombas trifásicas requieren dispositivos
de arranque del motor con protección contra sobrecarga. Vea FM0486 para instalaciones duplex.
6. El tanque se debe ventilar conforme a los códigos de plomería locales. Las bombas se deben
instalar conforme al Código Eléctrico Nacional y a todos los códigos y ordenanzas locales que
correspondan. Las bombas no se deben instalar en sitios peligrosos conforme a la clasicación
del Código Eléctrico Nacional, ANSI/NFPA 70.
7. “Riesgo de choque eléctrico”. No quite el cable de alimentación eléctrica ni el dispositivo de
alivio de tensión y no conecte un conductor directamente a la bomba.
8. La instalación y vericación de los circuitos eléctricos y del equipo deberán llevarse a cabo por
un técnico electricista calicado.
9. La instalación y vericación de la bomba deberá llevarse a cabo por una persona calicada.
10. Riesgo de choque eléctrico – No se ha investigado el uso de estas bombas en áreas marinas y en piscinas.
11. Este producto contiene sustancias químicas que de acuerdo al estado de California pueden
causar cáncer y defectos congénitos u otros daños a la salud reproductiva.
1. Asegúrese de que la fuente de energía eléctrica sea capaz de manejar los requisitos de voltaje
del motor, según se indica en la etiqueta de nombre de la bomba.
2. La instalación de bombas automáticas con interruptores de otador de nivel variable o las bom-
bas no automáticas que usan interruptores de otador de nivel variable auxiliares es responsabi-
lidad del instalador y deberá vericarse que el interruptor de otador atado no se enganchará en
el aparato de la bomba ni en las peculiaridades del foso y que está jado de manera que permita
la parada de la bomba. Se recomienda usar tubería y empalmes rígidos y que el foso tenga 45
cm (18 pulg.) o más de diámetro.
3. Información - Objetivo del agujero de ventilación. Es necesario que todas las bombas
sumer-gibles de sumidero, euentes y de aguas cloacales capaces de manejar residuos sólidos
de varios tamaños tengan la entrada en la parte inferior para reducir el atascamiento y las fallas
del sello. Si se incorpora a la instalación una válvula de retención, deberá perforarse un agujero
de ventilación [de aprox. 5 mm (3/16 pulg.)] en la tubería de descarga debajo de la válvula de
retención y de la tapa del foso a n de purgar la unidad del aire atrapado. La causa de aire
atrapado puede ser agitación y/o un estanque seco. Deberá revisarse periódicamente el agujero
de ventilación para vericar que no esté atascado. Las bombas de las series 53, 57 ó 98 poseen
una ventilación ubicada en la caja de la bomba del lado opuesto al otador, junto a una aleta
de la caja. Sin embargo, se recomienda un agujero de ventilación adicional. Un agujero de
ventilación en una aplicación de carga elevada podría causar demasiada turbulencia. Es posible
que usted preera no perforar uno. Si decide no perforar un agujero de ventilación, asegúrese
de que la caja de la bomba y el impulsor estén cubiertos de líquido antes de conectar la tubería
a la válvula de retención y que no haya ningún tipo de entrada de aire en la vía de entrada
de la bomba. NOTA: EL AGUJERO TAMBIÉN DEBERÁ ESTAR POR DEBAJO DE LA TAPA
DEL SUMIDERO Y SE DEBERÁ LIMPIARLO PERIÓDICAMENTE. Se verá un chorro de agua
saliendo del agujero durante los períodos de bombeo.
4. Se debe revisar la bomba frecuentemente para asegurarse de que no hay escombros y/o
acumulación que pueda interferir con la posición “on” (encendido) o “off” (apagado) del otador.
La reparación y servicio deberá hacerse solamente por personal de una Estación de servicio
autorizada por Zoeller Pump Company.
5. Las bombas de achique y de euentes no se diseñan para uso en fosos con aguas cloacales crudas.
6. La temperatura de funcionamiento máxima para bombas de modelo estándar no debe superar
54°C (130°F).
7. Las bombas modelos 266, 267, 268, y 137 se deben operar en posición vertical. No intente
encender la bomba cuando esté inclinada o apoyada sobre uno de sus lados.
8. No opere la bomba en una aplicación donde la carga dinámica total sea menor que la carga
dinámica total mínima que se indica en la Curva de rendimiento de la bomba.
AVISO: Las bombas con la marca “UL” y “US” han sido probadas de acuerdo al estándar UL778.
Las bombas “aprobadas por CSA” están certicadas de acuerdo al estándar CSA C22.2 No. 108.
Su Tranquilidad es Nuestra Prioridad
®
La siguiente información sobre
este producto reeja las condi-
ciones existentes en la fecha de
publicación. Se debe consultar a
la fábrica cualquier discrepancia o
inconsistencia que existiera.
AVISO: AGUJERO DE VENTILACIÓN
PARA LA VÁLVULA DE RETENCIÓN,
VEA EL NRO. 3 EN LA SECCIÓN DE
PRECAUCIONES A CONTINUACIÓN
Y EL NRO. 4 EN LA PÁGINA 3.
ENVIAR CORRESPONDENCIA A: P. O. Box 16347 • Louisville, KY 40256-0347 USA
ENVIAR A: 3649 Cane Run Road • Louisville KY, 40211-1961 USA
+1 (502) 778-2731 • Fax: +1 (502) 774-3624
Visite nuestro sitio web:
www.zoeller.com
FECHA DE INSTALACIÓN:
NÚMERO DE MODELO:
INSTRUCCIONES DE INSTALACIÓN
MODELOS RECOMENDADOS
LISTA DE VERIFICACIÓN DE PRE-INSTALACIÓN - TODAS LAS INSTALACIONES
1. Inspeccione su bomba. Ocasionalmente, los productos se dañan durante el envío. Si la unidad está dañada, comuníquese con su vendedor antes de usarla. NO quite los tapones de prueba de la cubierta
ni del cárter del motor.
2. Lea cuidadosamente toda la literatura provista para familiarizarse con los detalles especícos relacionados con la instalación y uso. Estos materiales deberán guardarse para referencia fu
tura.
VER ABAJO LA LISTA DE ADVERTENCIAS VER ABAJO LA LISTA DE PRECAUCIONES
REFIÉRASE A LA GARANTÍA EN LA PÁGINA 2.
®

6
© Copyright 2011 Zoeller Co. All rights reserved.
bombeo. La garantía presentada en el párrafo anterior deja sin efecto cualquier otra
garantía expresa o implícita; y no autorizamos a ningún representante u otra persona para
que asuma por nosotros ninguna otra responsabilidad con respecto a nuestros productos.
Comuníquese con el Fabricante en 3649 Cane Run Road, Louisville, KY 40211 EE.UU.,
Attention: Customer Service Department, para obtener cualquier reparación necesaria o
reemplazo de partes o información adicional sobre nuestra garantía.
EL FABRICANTE EXPRESAMENTE RECHAZA RESPONSABILIDAD POR DAÑOS
ESPECIALES, EMERGENTES O INCIDENTALES O POR INCUMPLIMIENTO DE
LA GARANTÍA EXPRESA O IMPLÍCITA; Y CUALQUIER GARANTÍA IMPLÍCITA DE
IDONEIDAD PARA UN FIN PARTICULAR Y DE COMERCIALIZACIÓN SE LIMITARÁ
A LA DURACIÓN DE LA GARANTÍA EXPRESA.
Algunos estados no permiten limitaciones en la duración de una garantía implícita, de
forma que la limitación anterior podría no aplicar a usted. Algunos estados no permiten
la exclusión o limitación de daños incidentales o emergentes, de forma que la limitación
o exclusión anterior podría no aplicar a usted.
Esta garantía le otorga a usted derechos legales especícos y podría tener otros derechos
que varían de un estado a otro.
GARANTÍA LIMITADA
El Fabricante garantiza, al comprador y el propietario subsiguiente durante el período de
garantía, que cada producto nuevo está libre de defectos en materiales y mano de obra
bajo condiciones de uso y servicio normales, cuando se usa y mantiene correctamente,
durante un período de tres años a partir de la fecha de fabricación original del producto.
Las partes que fallen durante el período de garantía, un año a partir de la fecha de compra
por parte del usuario nal, lo que ocurra primero, cuyas inspecciones determinen que
presentan defectos en materiales o mano de obra, serán reparadas, reemplazadas o
remanufacturadas a opción del Fabricante, con la condición sin embargo de que por hacerlo
no estemos en la obligación de reemplazar un ensamblaje completo, el mecanismo entero
o la unidad completa. No se dará concesión alguna por costos de envío, daños, mano de
obra u otros cargos que pudieran surgir por falla, reparación o reemplazo del producto.
Esta garantía no aplica a y no se ofrecerá garantía alguna por ningún material o producto
que haya sido desarmado sin aprobación previa del Fabricante, o que haya sido sometido
a uso indebido, aplicación indebida, negligencia, alteración, accidente o acto fortuito;
que no haya sido instalado, usado o mantenido según las instrucciones de instalación
del Fabricante; que haya sido expuesto a sustancias foráneas que incluyen pero no se
limitan a lo siguiente: arena, grava, cemento, lodo, alquitrán, hidrocarburos, derivados de
hidrocarburos (aceite, gasolina, solventes, etc.), u otras sustancias abrasivas o corrosivas,
toallas para lavar o productos sanitarios femeninos, etc. en todas las aplicaciones de
LO QUE DEBE Y NO DEBE HACER PARA INSTALAR UNA BOMBA DE SUMIDERO
1. LEA completamente todo el material sobre la instalación provisto con la bomba.
2. INSPECCIONE la bomba para ver si hay cualquier daño visible causado durante el envío. Comu-
níquese con el vendedor si la bomba está dañada.
3. RETIRE todos los escombros del sumidero. Asegúrese de que la bomba se apoyará sobre una
supercie dura, plana y estable. NO LA INSTALE sobre arena, grava o tierra.
4. ASEGÚRESE de que el sumidero sea sucientemente grande para permitir el funcionamiento
correcto de los interruptores de control de nivel.
5. SIEMPRE desconecte la bomba de la fuente de alimentación eléctrica antes de
manipularla.
SIEMPRE conecte la bomba a un circuito protegido separadamente y con puesta a tierra
adecuado.
JAMÁS corte, empalme o dañe el cable de alimentación eléctrica. (Empalme únicamente cuando
hay una caja de conexión hermética.)
JAMÁS transporte o levante la bomba por su cable de alimentación eléctrica.
JAMÁS use un cable de extensión con una bomba de sumidero.
6. INSTALE una válvula de retención y una unión en la tubería de descarga.
JAMÁS use una tubería de descarga de menor tamaño que la descarga de la bomba.
7. JAMÁS use una bomba de sumidero como una bomba excavadora o para zanjas, ni para
bombear aguas cloacales, gasolina u otros líquidos peligrosos.
8. PRUEBE la bomba inmediatamente después de su instalación para asegurarse de que el
sistema funciona correctamente.
9. CUBRA el foso con una tapa adecuada para sumidero.
10. EXAMINE todos los códigos nacionales y locales aplicables y verique que la instalación esté
de acuerdo a cada uno de ellos.
11. CONSULTE con el fabricante si necesita aclaraciones o tiene preguntas.
12. CONSIDERE un sistema de dos bombas con alarma en donde la instalación puede sobrecargarse
o la falla de una bomba primaria causaría daños a la propiedad.
13. CONSIDERE un sistema de apoyo de CD en donde una bomba de achique o sumidero es
necesaria para prevenir daños a la propiedad debido a inundación causada por interrupciones
en el suministro de energía eléctrica, problemas mecánicos o eléctricos, o sobrecarga del
sistema.
14. INSPECCIONE y pruebe el funcionamiento del sistema por lo menos cada 3 meses.
En aquellas instancias en que haya daños causados por una presunta falla de la
bomba, el propietario deberá conservar la bomba a n de investigar dicha falla.
PRECAUCIONES ELÉCTRICAS - Antes de proporcionar algún servicio a la bomba, desactive siempre el interruptor principal de suministro de energía
eléctrica y desenchufe la bomba. Asegúrese de usar zapatos protectores con suelas aislantes y de no estar parado en el agua. Bajo condiciones de inundación, llame a
su compañía eléctrica local o a un técnico electricista calicado para desconectar el servicio eléctrico antes de quitar la bomba.
Las bombas sumergibles contienen aceites que se presurizan y calientan bajo condiciones operativas.
Deje que pasen 2½ horas después de apagarla antes de proceder con el servicio.
Si la lista de vericación arriba mencionada no revela el problema, consulte con la fábrica. No intente proporcionar algún servicio o desarmar la
bomba. Las Estaciones de servicio autorizadas por Zoeller deberán proporcionar dicho servicio.
Visite el sitio www.zoellerpumps.com/servicestations para encontrar la estación de servicio autorizada para su zona.
LISTA DE VERIFICACIÓN DE SERVICIO
CONDICIÓN CAUSAS COMUNES
A. La bomba no arranca o no funciona.
Verique el fusible, voltaje bajo, protección contra sobrecarga abierta, cableado abierto o incorrecto, interruptor abierto, impulsor o sello
trabado mecánicamente, capacitor o relé defectuoso, motor o cableado eléctrico en corto circuito. Conjunto del otador enganchado.
Interruptor defectuoso, dañado o fuera de punto.
B. El motor se sobrecalienta y activa la protección
contra sobrecarga o desconecta el fusible.
Voltaje incorrecto, carga negativa (descarga abierta menos de lo normal), impulsor o sello trabado mecánicamente, capacitor o relé
defectuoso, motor en corto circuito.
C. La bomba se encienda y se apaga muy a
menudo.
El otador está apretado en la varilla, la válvula de retención está atascada o no hay una instalada en una línea de larga distancia,
protección contra sobrecarga abierta, interruptores defectuosos, foso del sumidero demasiado pequeño.
D. La bomba no se apaga. Hay escombros debajo del conjunto del otador, el otador o la varilla del otador están trabados por los lados del foso u otros, interruptor
defectuoso, dañado o fuera de punto.
E. La bomba funciona pero sin o con poca agua.
Verique la caja del ltro y la tubería de descarga, o si se usa una válvula de retención, el agujero de ventilación debe estar abierto. La
carga de descarga excede la capacidad de la bomba. Voltaje bajo o incorrecto. Rotación incorrecta del motor. Capacitor defectuoso. El
agua de entrada contiene aire o hace que el aire entre en la bomba.
F. Caída en la carga y/o capacidad después de un
período de uso.
Aumento de fricción en la tubería, línea o válvula de retención atascada. Material abrasivo o productos químicos adversos podrían haber
deteriorado el impulsor o el cárter de la bomba. Revise la línea. Quite la base e inspeccione.

7
© Copyright 2011 Zoeller Co. All rights reserved.
INSTALACIÓN RECOMENDADA PARA TODAS LAS APLICACIONES
Todas las instalaciones deben cumplir con todos los códigos eléctricos y de instalación sanitaria aplicables, incluyendo, pero sin limitarse al Código Eléctrico Nacional,
los códigos locales, regionales y/o los códigos estatales de instalación sanitaria, etc. No se debe usar las instalaciones en lugares peligrosos.
1. El cableado y la protección eléctrica deben estar de acuerdo con el Código
Eléctrico Nacional y todos los otros requisitos eléctricos locales y estatales
aplicables.
2. Instale el “Unicheck” (combinación de unión y válvula de retención) apropiado de
Zoeller, luego arriba del estanque para que se pueda quitar fácilmente la bomba
para su limpieza o reparación. Si los sistemas para aguas cloacales, euentes
o achique requieren instalación de carga elevada o por debajo de la tapa, use
30-0164 en tubería de 38 mm (1½ pulg.), 30-0152 en tubería de 51 mm (2 pulg.)
y 30-0160 en tubería de 76 mm (3 pulg.). Vea el número 4 más abajo.
3. Todas las instalaciones requieren una tapa para prevenir que escombros caigan
dentro del estanque y prevenir lesiones accidentales.
4. Cuando instale un “Unicheck”, perfore un agujero de 5 mm (3/16 pulg.) de
diámetro en la tubería de descarga al mismo nivel de la parte superior de la
bomba. NOTA: EL AGUJERO TAMBIÉN DEBERÁ ESTAR POR DEBAJO DE
LA TAPA DEL ESTANQUE Y SE DEBE LIMPIARLO PERIÓDICAMENTE. (Para
unidades de carga elevada, ver el número 3 de la lista de “Precauciones” en la
página 1.) Se verá un chorro de agua saliendo del agujero durante los períodos
de bombeo.
5. Fije rmemente el cable de alimentación eléctrica al tubo de descarga con cinta
o abrazadera.
6. Use tubería de descarga de tamaño completo.
7. El estanque debe estar de acuerdo con los códigos y las especicaciones
aplicables.
8. La bomba debe estar nivelada y el mecanismo del otador libre de los lados del
estanque antes de encender la bomba.
9. El estanque debe estar limpio y libre de escombros después de la instalación.
10. El instalador deberá suministrar una válvula de paso directo o una válvula de
bola y instalarla de acuerdo con cualesquiera y todos los códigos.
11. La ubicación de los interruptores de otador es como se muestra en el esquema
a la izquierda. El punto "off" (apagado) debe estar por encima del cárter del mo-
tor y a 180° de la entrada. NOTA: PARA BOMBAS AUTOMATICAS, UTILICE EL
ESQUEMA PARA LA INSTALACION PARA ACHIQUE MÁS ABAJO.
12. Los sellos herméticos contra gases son necesarios en todas las instalaciones de
aguas cloacales a n de contener los gases y olores.
13. Ventile los gases y olores a la atmósfera a través del tubo de ventilación.
(sólo para cloaca y achique).
14. Instale el soporte para bomba Zoeller (Modelo 10-2421) debajo de la bomba para
proporcionar un sumidero de decantación (sólo para euente y achique).
Para euente solamente:
15. La conexión del cableado de la bomba a la fuente de alimentación eléctrica debe
hacerse a través de una caja de conexión hermética Zoeller o un empalme her-
mético. NOTA: La caja hermética es obligatoria en áreas húmedas. Vea FM0732.
Vea el número 8 en la página 1.
16. Consulte el Manual sobre tamaños de euentes del SSPMA para determinar la
posición de los interruptores “on-off” (encendido-apagado).
17. Se debe usar tubos verticales en el tanque séptico para tener fácil acceso a la
bomba y al ltro.
NOTA: Las bombas de sello doble ofrecen protección adicional contra los daños
causados por falla del sello.
En algunas instalaciones es deseable
instalar un soporte colgante independiente
para los interruptores de control de
nivel para evitar posibles enganches en
las bombas, tubería, válvulas, etc. Los
soportes colgantes del otador se pueden
comprar de Zoeller Company según la
Hoja de catálogo FM0526, o fabricarse de
tubería y empalmes comunes.
MÉTODOS SUGERIDOS PARA LA INSTALACIÓN DEL FLOTADOR
SOPORTE COLGANTE PARA FLOTADOR TÍPICO EN FOSOS DE
CONCRETO O TUBOS VERTICALES PARA TANQUES SÉPTICOS
SOPORTE COLGANTE PARA FLOTADOR
TÍPICO EN FOSOS CON TAPA DE ACERO
SK1217 SK1218
INSTALACIÓN TÍPICA PARA AGUAS CLOACALES
SK290
ENCENDER
APAGAR
10 CM (4 PULG.)
DE GRAVA
NOTA: Siempre
consulte FM0551
de Zoeller y/o
la Instalación y
mantenimiento
de bombas para
aguas cloacales
recomendada por
SSPMA
INSTALACIÓN TÍPICA PARA EFLUENTES
SK291
A LA FUENTE DE
SUMINISTRO DE
CA, ALAMBRE
TIPO U.F.
TANQUE SÉPTICO CÁMARA DE DOSIFICACIÓN
ENCENDER
APAGAR
FLOTADOR
DEL ALARMA
WW FILTRO
AL SISTEMA DE BAJA PRESIÓN,
SISTEMA DE MONTÍCULOS, FILTRO
DE ARENA, CAMPOS DE DRENAJE
U OTRO SITIO DE DESECHO
LÍNEA DEL SUELO
NOTA: Vea FM0531,
FM0732 y FM1420
para referencia sobre
alarmas, controles y
cajas de conexión.
INSTALACIÓN TÍPICA PARA ACHIQUE
SK292
ENCENDER
APAGAR
10 CM (4 PULG.)
DE GRAVA
NOTA: Vea FM0531, FM0732 y FM1420 para referencia
sobre alarmas, controles y cajas de conexión.
TAPA DE ACCESO
GRAVA FINA TUBERÍA DE PVC O ACERO
INOXIDABLE DE PESO LIVIANO
BRIDA COMÚN
DE LA TUBERÍA
ÁRBOL PARA
FLOTADOR 10-
1457 CON TRES
FLOTADORES

8
© Copyright 2011 Zoeller Co. All rights reserved.
INSTRUCCIONES PARA LA INSTALACIÓN DE LOS MODELOS WD Y WH
AVISO IMPORTANTE: Ciertas pólizas de seguro, tanto comerciales como residenciales, extienden la cobertura a los daños causados por la falla del producto.
En la mayoría de los casos, usted deberá conservar el producto para respaldar su reclamo. Zoeller Pump Co. reemplazará la unidad o reembolsará el precio
de compra original una vez que la compañía de seguros liquide el reclamo, en el caso de que usted necesite conservar el producto para respaldar un reclamo
por daños que le haya presentado a su compañía de seguros.
(1) (2)
L1 L2
(3)
DIAGRAMA DE CABLEADO PARA LOS MODELOS:
WD-230V, 1 FASE, 60 CICLOS
WH-200/208V, 1 FASE, 60 CICLOS
Nota: No tener en cuenta los límites adecuados
de la atadura podría alterar el funcionamiento
seguro del interruptor.
Nota: El cable debe ser instalado en posición
horizontal.
Los modelos WD y WH son completamente automáticos. Se incluye un
interruptor de otador con cableado de fábrica en el circuito de la bomba para
proveer una operación automática una vez que el interruptor de otador se
haya atado correctamente a la tubería de salida. Use el diagrama de arriba
para asegurar correctamente el interruptor de otador y obtener la atadura
apropiada para adecuar el ciclo de encendido-apagado a cada aplicación.
5 PULG., MÍN.
22 PULG., MÁX.
INTERRUPTOR DE 20 AMPERIOS
(MODELOS WD Y WH)
SK305
011835
BLANCO
VERDE
NEGRO
NEGRO
BLANCO
INTERRUPTOR
DEL FLOTADOR
CAPACITOR
AZUL
AZUL
(BLANCO)
ROJO
(MARRÓN)
MOTOR
AMARILLO
(NEGRO)
ROJO
ARRANQUE
ENCENDIDO
O.L.
Determinación del rango de bombeo en pulgadas
(1 pulg. = 2,5 cm)
Usar solamente como guía. Debido al peso del cable, el rango de bombeo
sobre la horizontal no es igual al rango de bombeo debajo de la horizontal.
Los rangos se basan en pruebas en condiciones no turbulentas. El rango
puede variar debido a la temperatura del agua y a la forma del cable.
A medida que aumenta la longitud de la atadura, también aumenta la
variación en el rango de bombeo.
Longitud de la atadura 5 10 15 20 22
mín. máx.
Rango de bombeo 9 13.5 18 22 24
INSTRUCCIONES PARA EL CABLEADO MONOFÁSICO
PARA SU PROTECCIÓN, SIEMPRE DESCONECTE LA BOMBA DE LA FUENTE DE ALIMENTACIÓN ELÉCTRICA ANTES DE
MANIPULARLA. Las bombas monofásicas se suministran con enchufes de 3 patillas con puesta a tierra para ayudar a protegerle contra la posibilidad de
choque eléctrico. NO RETIRE BAJO NINGUNA CIRCUNSTANCIA LA CLAVIJA DE PUESTA A TIERRA. Los enchufes de 3 patillas se deben introducir
en un tomacorriente para 3 patillas apropiado. Si la instalación no posee un tomacorriente de este tipo, se debe cambiar por uno apropiado, cableado
y con puesta a tierra de acuerdo al Código Eléctrico Nacional y a todas las ordenanzas y códigos locales aplicables.
“Riesgo de choque eléctrico”. No quite el cable de alimentación eléctrica ni el dispositivo de alivio de tensión y no conecte un
conductor directamente a la bomba.
La instalación y vericación de los circuitos eléctricos y del equipo deberán llevarse a cabo por un técnico electricista calicado.
A las unidades que se suministran sin enchufe (monofásico y trifásico) y a las unidades monofásicas no automáticas que poseen un
enchufe de 20 amperios se les debe conectar un control de motor y un control de nivel de líquidos durante la instalación. Los niveles de voltaje, amperaje,
frecuencia, puesta a tierra y potencia del dispositivo de control deben ser apropiados para la bomba a la cual se conecta.
INSTRUCCIONES PARA EL CABLEADO TRIFÁSICO
(3)
L1 L2
006848
(1) (2)
L3
PARA
SU PROTECCIÓN, SIEMPRE
DESCONECTE LA BOMBA DE LA
FUENTE DE ALIMENTACIÓN ELÉCTRICA
ANTES DE MANIPULARLA.
Las bombas trifásicas no son automáticas. Para
operarlas automáticamente se requiere un panel
de control. Siga las instrucciones provistas con
el panel para completar el cableado del sistema.
Para bombas trifásicas automáticas, ver el
diagrama de cableado para bombas trifásicas
automáticas a la derecha.
Antes de instalar una bomba, verique la rotación de la misma
para asegurarse de que los cables se hayan conectado
correctamente a la fuente de alimentación eléctrica y que el
conductor verde del cable de alimentación eléctrica (vea el
diagrama de cableado) está conectado con puesta a tierra
adecuada. Active momentáneamente la bomba, observando
la dirección del retroceso debido a la torsión de arranque. La
rotación es correcta si el retroceso está en dirección opuesta
a la echa de rotación en la caja de la bomba. Si la rotación
no es correcta, cambiar dos de cualquiera de los conductores
eléctricos, excepto el con puesta a tierra, proveerá la rotación
apropiada.
Todas las bombas trifásicas requieren dispositivos de arranque del motor con protección contra sobrecarga.
Vea FM0514 para instalaciones simplex o FM0486 para instalaciones duplex. Las bombas se deben instalar de
acuerdo al Código Eléctrico Nacional y a todas las ordenanzas y códigos locales aplicables. Las bombas no se
deben instalar en sitios clasicados como peligrosos según el Código Eléctrico Nacional ANSI/NFPA 70.
VERDE
NEGRO
ROJO
BLANCO
VERDE
NEGRO
ROJO
BLANCO
MOTOR
AZUL ROJO AMARILLO
013071
RELÉ
ROJO
COM
NC
INTERRUP-
TOR DEL
FLOTADOR
AZUL
AZUL
ROJO
CANELA
AMARILLO
NARANJA
BLANCO BLANCO
MORADO
MORADO
O MARRÓN
TERMOSTATO
BOBINAS
MOTOR
(3)
(1) (2)
CR
7
8
B
A
1
2
3
4
(M1) (M2)
9 6
4
5
L3L2L1
BLANCO

9
© Copyright 2011 Zoeller Co. All rights reserved.
FM2676F
ADRESSE POSTALE : P.O. BOX 16437 • Louisville, KY 40256-0347 USA
ADRESSE PHYSIQUE : 3649 Cane Run Road • Louisville, KY 40211-1961 USA
TÉL : +1 (502)778-2731 • FAX +1 (502) 774-3624
Que vous dormiez en paix est notre priorité
®
Les renseignements présentés
ici reètent les conditions au mo-
ment de la publication. Consulter
l’usine en cas de contradiction
ou d’inconsistance.
Avis à l'installateur - Les instructions doivent rester avec l'installation.
www.zoeller.com
DATE D’INSTALLATION :
NUMÉRO DE MODÈLE :
INSTRUCTIONS D’INSTALLATION
MODÈLES RECOMMANDÉS
AVIS : TROU D’ÉVENT POUR
LE CLAPET DE SÉCURITÉ
VOIR N° 3 CI-DESSOUS ET
N° 4 PAGE 3.
LISTE DE VÉRIFICATIONS AVANT L’INSTALLATION - TOUTES LES INSTALLATIONS
1. Inspecter la pompe. De temps en temps, la pompe est endommagée en cours d’expédition. Si la pompe est endommagée, contacter le distributeur avant de l’utiliser. NE PAS enlever les bouchons test
du couvercle ni du compartiment moteur.
2.
Il faut lire attentivement tous les documents fournis pour se familiariser avec les détails spéciques de l’installation et de l’utilisation. Il faut conserver ces documents pour pouvoir les consulter ultérieurement.
1. Il faut vérier que la prise est à portée du cordon d’alimentation de la pompe. NE PAS UTILISER
DE RALLONGE. Les rallonges trop longues ou de trop faible capacité ne fournissent pas la tension
nécessaire au moteur de la pompe, mais, encore plus important, elles peuvent être dangereuses
si l’isolant est endommagé ou si l’extrémité avec le branchement tombe dans un endroit humide
ou mouillé.
2. Vérier que le circuit d’alimentation de la pompe est équipé de fusibles ou de disjoncteurs de
capacité appropriée. Il est recommandé d’installer un circuit indépendant de capacité sufsante,
conforme aux codes électriques nationaux pour la capacité indiquée sur la plaque d’identication
de la pompe.
3. Vérication de la mise à la terre. Pour des raisons de sécurité, il faut vérier la terre de chaque
prise électrique en utilisant un analyseur de circuit sur la liste d’Underwriters Laboratory qui indique
si les ls de phase, de neutre et de terre de la prise sont branchés correctement. S’ils ne sont pas
branchés correctement, appeler un électricien agréé qualié.
4. Pour des raisons de sécurité, les pompes et autre équipement équipés d'un l à trois broches,
avec mise à la terre, doivent être branchés sur une prise à trois broches. Pour des raisons de
sécurité, la prise doit être protégée par un disjoncteur différentiel. Quand la pompe est branchée
dans un boîtier de branchement étanche, il est possible d'enlever la che et de faire le branchement
directement sur l'alimentation avec mise à la terre appropriée. Pour des raisons de sécurité, ce
circuit peut être protégé par un disjoncteur différentiel. L'installation doit être conforme au code
national d'électricité et tous les règlements locaux.
5. POUR DES RAISONS DE SÉCURITÉ, IL FAUT TOUJOURS DÉBRANCHER L’ALIMENTATION
DE LA POMPE AVANT DE LA MANIPULER. Les pompes monophasées sont équipées d’un cordon
avec che à trois broches de mise à terre pour protéger contre les électrocutions. IL NE FAUT
JAMAIS ENLEVER LA BROCHE DE MISE À TERRE. Il faut brancher la che à trois broches
dans une prise à trois broches de mise à terre. Si le circuit n’est pas équipé d’une telle prise, il faut
en installer une en respectant le code national d’électricité et toute la législation et réglementation
locales en vigueur. Les pompes triphasées doivent être équipées d’un dispositif de mise en marche
avec protection thermique du moteur. Consulter la norme FM0486 pour les installations duplex.
6. La ventilation du réservoir doit être conforme au code de plomberie local. Les pompes doivent être
installées conformément au code national d’électricité et à toute la législation et réglementation
locales en vigueur. Les pompes ne doivent pas être installées dans des endroits classiés à risque,
conformément à la norme ANSI/NFPA 70 du Code national américain de l’électricité.
7. Risque d’électrocution. Ne pas enlever le cordon d’alimentation ni le distributeur de tension
mécanique, ni brancher le conduit directement à la pompe.
8. L’installation et la vérication de l’équipement électrique doivent être faites par un électricien qualié.
9. L’installation et la vérication de la pompe doivent être faites par une personne qualiée.
10. Risque d’électrocution. L’usage de ce type de pompe dans une piscine de natation et des zones
marines n’a pas été étudié.
11. Ce produit contient des produits chimiques dont l’état de la Californie a déterminer comme étant
la cause de cancer et de déciences à la naissance ou autres dommages reproductifs.
1. Vérier que le circuit d’alimentation a une capacité sufsante pour alimenter le moteur, comme
indiqué sur la pompe ou sur la plaque d’identication de l’appareil.
2. L’installateur est responsable de l’installation des pompes automatiques avec des interrupteurs à
niveau variable ou des pompes non-automatiques utilisant des interrupteurs auxiliaires à niveau
variable et il doit s’assurer que l’interrupteur à otteur est installé fermement pour qu’il n’accroche
pas à la pompe ni au puits pour permettre l’arrêt de la pompe. Il est recommandé d’utiliser du tuyau
et des raccords rigides et le puits doit avoir un diamètre supérieur à 45 cm (18").
3. Renseignements sur le trou d’évent. Il est nécessaire que la pompe submersible, les pompes à
efuents et d’égout capables de passer des solides de différentes tailles aient leur alimentation à
la base pour réduire le colmatage et la défaillance des joints. Si l’installation comprend un clapet
de sécurité, il faut percer un trou d’évent d’environ 5 mm (3/16") dans le tuyau de refoulement au-
dessous du clapet de sécurité et le couvercle pour purger l’air de l’appareil. L’air emprisonné est
causé par l’agitation et / ou un puits sec. Il faut vérier périodiquement que le trou d’évent n’est pas
colmaté. Les carters de pompe de la série 53 / 57 et 98 sont équipés d’un trou d’évent à l’opposé
du otteur, près du goujon du carter, du goujon du carter, mais un trou d'évent est recommandé.
Le trou d'évent de l'application à une hauteur de refoulement dynamique élevée peut causer une
turbulence trop élevée. Il peut être désirable de ne pas le percer. S'il est décidé de ne pas percer
de trou d'évent, il faut s'assurer que le carter et le rotor de la pompe sont couverts de liquide
avant de brancher le tuyau sur le clapet anti-retour et qu'aucune conduite d'aspiration n'amène
de l'air à l'admission de la pompe. REMARQUE - LE TROU DOIT AUSSI ÊTRE AU-DESSOUS
DU COUVERCLE DU PUITS ET IL FAUT LE NETTOYER RÉGULIÈREMENT. Un jet d’eau sera
visible de cette orice durant les périodes de fonctionnement de la pompe.
4. Il faut vérier fréquemment qu’il n’y a pas de débris ni d’accumulation pouvant interférer avec le
déplacement du otteur de marche / arrêt. Les réparations ne doivent être faites que par un centre
de réparation agréé par Zoeller Pump Company.
5. Les pompes d’assèchement mécanique et d’efuents sont conçues pour pompage d’eau usée non
traitée dans un puits.
6. La température de fonctionnement maximale d’une pompe standard ne peut pas être plus de 54°C (130°F).
7. Il faut utiliser les pompes modèles 266, 267, et 137 en position verticale. Il ne faut pas essayer de
mettre la pompe en marche quand elle est inclinée ou couchée sur le côté.
8. Il ne faut pas faire fonctionner la pompe dans une application où la hauteur de refoulement
dynamique est inférieure à la hauteur de refoulement dynamique minimale donnée dans les courbes
de refoulement et de capacité.
SE RÉFÉRER À LA GARANTIE EN PAGE 2.
REMARQUE - Les pompes avec annotations “UL” et “US” sont vériées d’après la norme UL778. Les
pompes certiées CSA sont vériées d’après la norme C22.2 no 108.
AVERTISSEMENT
VOIR PLUS BAS POUR LA
LISTE DES AVERTISSEMENTS
VOIR PLUS BAS POUR LA
LISTE DES MISES EN GARDE
MISE EN GARDE
EFFLUENTS* / PUISARD / ASSÈCHEMENT
ÉGOUT
Série 49 / 53 / 57 Série 264
Série 137, Série 151 / 152 / 153 Série 266 / 267 / 268
®

10
© Copyright 2011 Zoeller Co. All rights reserved.
AVERTISSEMENT
PRÉCAUTIONS AVEC LE SYSTÈME ÉLECTRIQUE – Avant de réparer la pompe, il faut toujours ouvrir le circuit et débrancher la pompe, en prenant
soin de porter des chaussures à semelle isolante et de ne pas se tenir dans l’eau. En cas d’inondation, contacter la compagnie d’électricité ou un électricien agréé pour
couper l’alimentation avant de déposer la pompe.
AVERTISSEMENT
Les pompes submersibles contiennent de l’huile qui peut être sous pression ou devenir chaude en cours de fonctionnement. Attendre 2 heures et demi après
l’avoir débranchée avant de travailler sur la pompe.
LISTE DE VÉRIFICATIONS POUR L’ENTRETIEN
Si les vérications ci-dessus ne résolvent le problème, consulter l’usine. Ne pas essayer de réparer ou de démonter la pompe. Toutes les réparations
doivent être faites par un centre de réparation agréé par Zoeller. Visitez le site Web www.zoellerpumps.com/servicestations pour trouver le centre
de service agréé le plus proche.
CAUSES FRÉQUENTES
Vérier que le fusible est en bon état, que la tension est normale, que le circuit n’est pas surchargé et que le câblage est correct,
que l’interrupteur n’est pas ouvert, que le rotor ou le joint n’est pas bloqué, que le condensateur ou le relais n’est pas défec-
tueux, si installé, qu’il n’y a pas de court-circuit dans le moteur ou le bobinage. Flotteur bloqué en position basse. Interrupteur
défectueux, endommagé ou mal réglé.
Mauvaise tension, hauteur de refoulement négative (refoulement ouvert au-dessous de la normale), blocage mécanique du
rotor ou du joint, moteur court-circuité.
Flotteur grippé sur la tige, clapet de sécurité coincé ou pas de clapet installé sur une conduite longue, clapet de sécurité ouvert,
interrupteurs de niveau défectueux, puits trop petit.
Débris sous le otteur, otteur ou tige du otteur coincé contre la paroi du puits, interrupteur défectueux, endommagé ou mal réglé.
Vérier le carter de crépine, le tuyau de refoulement ou, si un clapet de sécurité est installé, le trou d’évent. La hauteur de refoule-
ment est supérieure à la capacité de la pompe. Mauvaise tension. Mauvaise direction de rotation de la pompe. Condensateur
défectueux. L'eau d'alimentation contient de l'air ou provoque l'entrée d'air dans la chambre de la pompe.
Augmentation de la friction dans le tuyau de refoulement, tuyau ou clapet de sécurité colmaté. Des produits abrasifs ou des
produits chimiques peuvent détériorer le rotor et le carter de pompe. Inspecter la conduite. Déposer la base et inspecter.
CONDITION
A. La pompe ne démarre pas ou ne fonc-
tionne pas.
B. Le moteur surchauffe et déclenche le
disjoncteur ou la sécurité thermique.
C. La pompe se met en marche et s’arrête
trop fréquemment.
D. La pompe ne s’arrête pas.
E. La pompe fonctionne mais son débit
est faible ou non existant.
F. Baisse de capacité ou de hauteur
de refoulement après une période
d’utilisation.
expresses ou implicites et nous n’autorisons aucun représentant ou autre personne à
accepter la responsabilité en notre nom pour nos produits.
Prendre contact avec le Fabricant, 3649 Cane Run Road, Louisville, KY 40211, à
l’attention du Service à la Clientèle, pour obtenir des réparations, des pièces de
remplacement ou des renseignements supplémentaires concernant la garantie.
LE FABRICANT REFUSE EXPRESSÉMENT TOUTE RESPONSABILITÉ POUR LES
DÉGÂTS SPÉCIAUX, INDIRECTS OU SECONDAIRES OU POUR LES RUPTURES
DE GARANTIE EXPRESSES OU IMPLICITES; ET TOUTE GARANTIE IMPLICITE
D’APPLICABILITÉ À UNE UTILISATION SPÉCIFIQUE OU DE COMMERCIALITÉ
EST LIMITÉE À LA DURÉE DE LA GARANTIE EXPRESSE.
Certaines provinces ne permettent pas les limitations de la durée de la garantie implicite
et il est possible que cette limitation ne s’applique pas. Certaines provinces ne permettent
pas l’exclusion ou la limitation des dégâts secondaires ou indirects, et il est possible que
cette limitation ou exclusion ne s’applique pas.
Cette garantie vous donne des droits spéciques reconnus par la loi et vous pouvez
également avoir d’autres droits qui varient d’une province à l’autre.
GARANTIE LIMITÉE
Le fabricant garantit à l’acheteur et au propriétaire ultérieur pendant la période de
garantie, tout produit neuf contre tout vice de matériel et de main-d’œuvre, en utilisation
normale et quand utilisé et entretenu correctement, pendant une période de 3 ans de
la date de fabrication initiale. Les pièces devenant défectueuses pendant la période de
garantie, et que des inspections prouvent contenir des vices de fabrication ou de main-
d’œuvre, seront réparées, remplacées ou rénovées au choix du Fabricant, à condition
qu’en faisant cela nous ne soyons pas obligés de remplacer l’ensemble, le mécanisme
complet ou l’appareil complet. Aucune provision n’est faite pour les frais d’expédition,
les dégâts, la main-d’œuvre ni d’autres frais causés par la défaillance, la réparation ou
le remplacement du produit.
Cette garantie ne s’applique pas et ne couvre aucun matériel ou produit qui a été
démonté sans l’autorisation préalable du Fabricant, soumis à un usage abusif, des
applications incorrectes, de la négligence, des modications, des accidents ou un cas
de force majeure ; qui n’a pas été installé, utilisé ou entretenu selon les instructions
d’installation du Fabricant; qui a été exposé, y compris, mais non de façon limitative, à
du sable, des gravillons, du ciment, de la boue, du goudron, des hydrocarbures ou des
dérivés d’hydrocarbures (huile, essence, solvants, etc.) ou à d’autres produits abrasifs
ou corrosifs, serviettes ou produits d’hygiène féminine etc., dans toutes les applications
de pompage. La garantie mentionnée ci-dessus remplace toutes les autres garanties
CONSEILS POUR L’INSTALLATION D’UNE POMPE DE PUISARD
1. IL FAUT lire toutes les instructions d’installation fournies avec la pompe.
2. IL FAUT vérier que les appareils n’ont pas été endommagés en cours d’expédition.
Contacter le distributeur si la pompe a été endommagée.
3. IL FAUT nettoyer tous les débris dans le puisard. Vérier qu’il y a une surface dure et
plate à l’emplacement désiré pour la pompe. NE PAS installer la pompe sur du sable,
du gravier ou de la terre.
4. IL FAUT vérier que le puisard est assez large pour avoir de l’espace sufsant pour
le bon fonctionnement des interrupteurs de commande de niveau.
5. IL FAUT toujours débrancher l’alimentation de la pompe avant de la
manipuler.
IL FAUT toujours brancher la pompe sur un circuit séparé mis à la terre.
IL NE FAUT JAMAIS couper, faire une épissure ou endommager un cordon
d’alimentation. (Pour faire une raccordement, il faut utiliser un boîtier de raccordement
étanche.
IL NE FAUT PAS utiliser le cordon d’alimentation pour transporter ou soulever la
pompe.
IL NE FAUT PAS utiliser de rallonge pour une pompe de puisard.
6. IL FAUT installer un clapet de sécurité et un raccord sur la conduite de refoulement.
IL NE FAUT PAS utiliser une conduite de refoulement de diamètre inférieur à celui du
refoulement de la pompe.
7. IL NE FAUT PAS utiliser une pompe de puisard comme pompe de tranchée
ou d’excavation, ou pour pomper des égouts, de l’essence ou tout autre liquide
dangereux.
8. IL FAUT essayer la pompe immédiatement après l’installation pour être certain que
le système fonctionne correctement.
9. IL FAUT recouvrir la pompe de puisard d’un couvercle de puisard approprié.
10. IL FAUT étudier tous les codes locaux et nationaux applicables et vérier que
l’installation est conforme.
11. IL FAUT consulter le fabricant pour obtenir des clarications ou des réponses aux
questions.
12. IL FAUT considérer un système à deux pompes avec une alarme quand l’installation
peut être surchargée ou si une défaillance de la pompe primaire causait des dégâts
importants.
13. IL FAUT considérer un système de secours en courant alternatif quand une pompe
de puisard ou d’séchage mécanique est nécessaire pour éviter des dégâts matériels
en cas d’inondation à la suite d’une panne d’alimentation secteur, de problème
mécanique ou électrique ou de surcharge du système.
14. IL FAUT inspecter le système et vérier son fonctionnement au moins tous les trois
mois.
Lorsque des dégâts sont causés par une défaillance présumée de la pompe, le
propriétaire doit garder la pompe en sa possession en vue d’enquête.

11
© Copyright 2011 Zoeller Co. All rights reserved.
Toutes les installations doivent être conformes aux codes électriques et de plomberie applicables, y compris, mais pas limité aux codes électriques nationaux, locaux,
régionaux et aux codes de plomberie provinciaux. Pas conçu pour utilisation dans les endroits dangereux.
Pour certaines installations, il peut être nécessaire d’installer un support indépendant pour les interrupteurs de commande de niveau pour éviter des accrochages possibles sur la
pompe, la tuyauterie, les vannes, etc. Il est possible de fabriquer les supports de otteur en utilisant des tuyaux et des raccords standard pour faciliter la dépose en cas de réparation.
Les supports de ottes sont disponible chez Zoeller tel que décrit au feuillet FM0526 ou peuvent être fabriqué avec de la tuyauterie et des raccords standard.
MÉTHODES SUGGÉRÉES POUR L’INSTALLATION DU FLOTTEUR
SUPPORT TYPIQUE DE FLOTTEUR POUR
COUVERCLE DE PUITS EN ACIER
SUPPORT DE FLOTTES TYPIQUE POUR PUISARD EN
BÉTON OU POUR PUIT D’ ACCÉS DE FOSSE SEPTIQUE
SK1218
SK1217
COUVERCLE D’ACCÈS
COLLET DE TUYAU
STANDARD
TUYAU EN ACIER INOXYDABLE
LÉGER OU EN PVC
GRAVILLON
10-1457 SUPPORT
MONTRÉ AVEC 3
FLOTTES
INSTALLATION RECOMMANDÉE POUR TOUTES APPLICATIONS
(1) Les circuits et les protections électriques doivent être conformes aux normes des
codes électriques nationaux, provinciaux et locaux.
(2) Installer un Unicheck (raccord / clapet de sécurité combiné) de Zoeller approprié,
de préférence juste au-dessus du puits pour permettre la dépose de la pompe
pour le nettoyage ou les réparations. Pour les égouts, les efuents ou les eaux
d’assèchement mécanique, utiliser le modèle 30-0164 avec des tuyaux de 1-1/2"
(38 mm), modèle 30-0152 avec des tuyaux de 2" (51 mm) et le modèle 30-0160
avec des tuyaux de 3" (76 mm) s’il faut une grande hauteur de refoulement ou en
cas d’installation sous un couvercle. Voir (4) ci-dessous.
(3) Tous les puits doivent avoir un couvercle pour empêcher les débris d’y tomber et
éviter les chutes accidentelles.
(4) Quand un Unicheck est installé, percer un trou de 5 mm (3/16") dans le tuyau de
refoulement, de niveau avec le dessus de la pompe. Les pompes de la série 50 et 90 ont
un trou d’évent intégré. REMARQUE – LE TROU DOIT AUSSI ÊTRE AU-DESSOUS
DU COUVERCLE DU PUITS ET IL FAUT LE NETTOYER RÉGULIÈREMENT
(pompes à hauteur de refoulement élevée, voir n° 3 de la première page
« MISE EN GARDE »). Un jet d’eau sera visible de cette orice durant les périodes
de fonctionnement de la pompe.
(5) Attacher fermement le cordon d’alimentation électrique sur le tuyau de refoulement
en utilisant du chatterton ou des colliers.
(6) Utiliser un tuyau de refoulement de pleines dimensions.
(7) Le puits doit être conforme à tous les règlements applicables.
(8) Avant la mise en service, la pompe doit être de niveau et le mécanisme du otteur ne doit
pas toucher les bords du puits.
(9) Après l’installation, le puits doit être propre et ne doit pas contenir de débris.
(10) L’installateur doit fournir la vanne d’arrêt et l’installer en respectant tous les
codes.
(11) Identier les interrupteurs à otteur indiqués dans les illustrations. Le point d'arrêt
doit être au-dessus du carter du moteur et à 180° de l'admission. Le point d’arrêt
ne se doit trouver jamais au-dessous du refoulement de la pompe (uniquement
pour les systèmes d'eaux usées et d’efuent). REMARQUE - pour les pompes
automatiques, utiliser le schéma d’installation pour l’assèchement ci-
dessous.
(12) Pour éviter la propagation des gaz et des odeurs, toutes les installations doivent
avoir des joints étanches.
(13) Les gaz et les odeurs sont évacués à l’atmosphère au moyen d’un tuyau d’évent.
(uniquement pour les systèmes d'eaux usées et d'assèchement).
(14) Installer la base de pompe Zoeller (modèle 10-2421) sous la pompe pour formir un
bassin de décantation (uniquement pour les systèmes d’efuent et d’assèchement).
Uniquement pour les systèmes d’efuent :
(15) Brancher l’alimentation de la pompe par l’intermédiaire d’un boîtier étanche Zoeller
ou d’une épissure étanche. REMARQUE – Le boîtier étanche est une nécessité
absolue dans un milieu humide. Voir le n° 8 à la première page de FM0732.
(16) Consulter le manuel de dimensions pour les égouts de SSPMA an de déterminer
le modèle d’interrupteur de marche / arrêt à utiliser.
(17) Un accès à la fosse septique doit être prévu pour l’entretien du ltre et de la
pompe.
REMARQUE – Les pompes à joint double offrent une protection supplémentaire contre
les dommages causés par la défaillance du joint.
INSTALLATION TYPIQUE
POUR ÉGOUT
MARCHE
ARRÊT
10 cm (4")
DE GRAVIER
1
2
3
5
11
10
8
7
6
4
4
12
13
9
SK290
REMARQUE–
Il faut toujours
consulter le bulletin
FM0551 de Zoeller
et/ou les instructions
d’installation et
d’entretien de la
pompe d’égout de
SSPMA.
INSTALLATION TYPIQUE
POUR L’ASSÈCHEMENT MÉCANIQUE
INSTALLATION TYPIQUE
POUR LES EFFLUENTS
SK291
7
9
10
6
8
1
4
5
311
212
NIVEAU DU SOL
VERS SYSTÈME À BASSE PRESSION
SYSTÈME À MONT, FILTRE EN SABLE,
SYSTÈME SEPTIQUE OU AUTRE SYSTÈME
DE TRAITEMENT
FOSSE SEPTIQUE
MARCHE
ARRÊT
VERS ALIMENTATION
ÉLECTRIQUE
FIL DE TYPE U.F.
PUISARD DE DOSAGE
ALARME
WW FILTRE
REMARQUE–
Voir FM0531, FM0732 et FM1420 pour
alarmes, commandes et boîtiers de raccordent.
SK292
ARRÊT
10 cm (4")
DE GRAVIER
1
2
3
5
10
9
8
7
6
4
11
12
13
MARCHE
REMARQUE–
Voir FM0531,
FM0732 et FM1420
pour alarmes, com-
mandes et boîtiers
de raccordement.
DIMENSIONS
MINIMALES DU BAS-
SIN : 45, 7 cm X 61
cm (18 po x 24 po).
UN PLUS GRANDE
PROFONDEUR PEUT
ÊTRE REQUISE.

12
© Copyright 2011 Zoeller Co. All rights reserved.
AVERTISSEMENT
POUR DES RAISONS DE SÉCURITÉ, IL FAUT TOUJOURS DÉBRANCHER L’ALIMENTATION ÉLECTRIQUE DE LA POMPE
AVANT L’INTERVENTION. Les pompes monophasées sont fournies avec une che à trois broches pour aider à protéger contre les risques d’électrocution.
IL NE FAUT JAMAIS ENLEVER LA BROCHE DE TERRE. La che à trois broches doit être branchée dans une prise à trois alvéoles correspondantes.
Si le circuit d’alimentation n’a pas une telle prise, il faut installer une prise du type approprié, branchée et mise à la terre selon le code national de
l’électricité et tous les codes et règlements locaux appropriés.
AVERTISSEMENT
« Risque d’électrocution ». Il ne faut pas enlever le cordon d’alimentation et le serre-câble ni brancher directement la pompe.
AVERTISSEMENT
L’installation et la vérication des circuits électriques et de la quincaillerie doivent être faites par un électricien qualié.
AVERTISSEMENT
Les unités non équipées d’une che (monophasée et triphasée) et les unités non automatiques monophasées à che de 20 ampères
doivent être dotées d’une commande de moteur et d’un régulateur de niveau de liquide lors de l’installation. La tension, l’intensité, la fréquence, la mise
à la terre et la puissance du dispositif de commande doivent s’accorder à la pompe sur lequel il est branché.
Instructions de branchement monophasé
(1) (2)
L1 L2
(3)
Installation des modèles WD et WH
SCHÉMA ÉLECTRIQUE POUR LES MODÈLES
WD - 230 V, monophasé, 60 Hz
WH - 200/208, monophasé, 60 Hz
Les modèles WD et WH sont entièrement automatiques. Un interrupteur
à otteur est inclus et branché dans le circuit de la pompe pour permettre
le fonctionnement automatique après avoir installé l’interrupteur à otteur
correctement sur le tuyau de refoulement. Il faut utiliser le schéma ci-dessus
pour attacher correctement l’interrupteur à otteur et obtenir un bras approprié
pour modier le cycle de marche-arrêt pour chaque application.
Dénition de la plage de pompage en
pouces (1 pouce = 2,5 cm)
Ce tableau ne doit être utilisé que comme
guide. À cause du poids du câble, la plage
de pompage au-dessus de l’horizontale n’est
pas égale à la plage de pompage au-dessous
de l’horizontale. Les plages sont basées sur
des essais sans turbulence. La plage peut
varier en fonction de la température de
l’eau et de la forme du cordon. Plus le bras
est long, plus les variations de plage de
pompage sont importantes.
Remarque – L’interrupteur risque de
mal fonctionner si le câble d’attache
n’est pas maintenu dans les limites
appropriées.
Remarque – Le câble doit être installé
horizontalement.
Longueur du
bras d’attache
Plage de
pompage
5 10 15 20 22
9 13.5 18 22 24
5 po min.
22 po max.
SK305
Interrupteur 20 amps (modèles WD et WH)
min. max.
011835
VERT
NOIR
MOTEUR
BLANC
COMMUTATEUR
DE FLOTTEUR
BLEU ROUGE
JAUNE
(NOIR)
EXÉCUTENT
DÉMARRENT
NOIR
BLANC CONDENSATEUR
DE PASSAGE
BLEU
(BLANC)
ROUGE
(BRUN)
O.L.
Instructions de branchement triphasé
AVERTISSEMENT
POUR DES
RAISONS DE SÉCURITÉ, IL
FAUT TOUJOURS DÉBRANCHER
L’ALIMENTATION ÉLECTRIQUE
DE LA POMPE AVANT L’INTERVENTION.
Toutes les pompes triphasées doivent être équipées d’un dispositif de démarrage, avec dispositif de protection
contre la surcharge. Voir FM0486 pour les installations duplex. La pompe doit être branchée conformément
au code national de l’électricité et tous les codes et règlements locaux appropriés. Il ne faut pas installer les
pompes dans un endroit classé dangereux conformément au code national de l’électricité, ANSI/NFPA 70.
(3)
L1 L2
006848
(1) (2)
L3
NOIR
VERT
ROUGE
BLANC
BLEU ROUGE JAUNE
MOTEUR
Les pompes triphasées ne sont pas automatiques. Pour
qu’elles fonctionnent automatiquement, il faut installer un
panneau de commande. Pour brancher le système, suivre
les instructions fournies avec le panneau de commande. Pour
trois phases automatique les pompes voient le diagramme de
câblage automatique de 3 phases situé vers le droit.
Avant d’installer la pompe, vérier la rotation de la pompe pour être
certain que les ls ont été branchés correctement sur l’alimentation
et que le l vert du cordon d’alimentation (voir schéma électrique)
est branché sur une bonne terre. Mettre la pompe momentanément
sous tension et observer la direction du retour causé par le couple de
démarrage. La rotation est correcte si le retour est en sense contraire
à la èche de rotation dans le carter de la pompe. Si la rotation n’est
pas correcte, inverser deux des ls de phase pour obtenir la bonne
direction de rotation.
(3)
(1) (2)
CR
7
8
B
A
1
2
3
4
(M1) (M2)
9 6
4
5
L3L2L1
013071
VERT
NOIR ROUGE
BLANC
RELAIS BLANC
ROUGE
FLOTTEUR
BLEU
BLEU
ROUGE
TAN
JAUNE
ORANGE
BLANC BLANC
POURPRE POURPRE
OU BRUN
ENROULEMENTS
THERMOSTAT
COM
NC
Pompe non-automatique triphasée Pompe automatique triphasée
REMARQUE IMPORTANTE. – Certaines polices d’assurance commerciales et résidentielles couvrent les dommages résultant d’une défaillance du
produit. Dans la plupart des cas, vous devez être en possession du produit pour déposer une réclamation. Zoeller Pump Co. s’engage à remplacer
l’appareil ou à rembourser le prix d’achat original après que l’assureur aura réglé la réclamation dans un cas où vous êtes tenu d’être en possession
du produit pour documenter une réclamation soumise à votre assureur.