535069 1 Grundfos Magna 32 100 Submittal CAPS User Manual
User Manual: Pump 535069 1 Grundfos Magna 32-100 Submittal
Open the PDF directly: View PDF
.
Page Count: 6

Submittal Data
PROJECT:
REPRESENTATIVE:
ENGINEER:
CONTRACTOR:
UNIT TAG:
TYPE OF SERVICE:
SUBMITTED BY:
APPROVED BY:
ORDER NO.:
QUANTITY:
DATE:
DATE:
DATE:
Product photo could vary from the actual product
MAGNA 32-100 F
Circulator pumps, electronically controlled
Conditions of Service
Flow:
Head:
Efficiency:
Liquid: Water
Temperature: 68 °F
NPSH required:
Viscosity:
Specific Gravity: 1.000
Pump Data
Maximum operating pressure: 203 psi
Maximum ambient temperature: 104 °F
Approvals: CETLUS
Flange standard: GF 15/26
Pipe connection: 1.25"
Product number: 98071396
Motor Data
P1 max: 10 .. 180 W
Rated voltage: 208-230 V
Main frequency: 60 Hz
Enclosure class: X4D
Insulation class: F
H
[ft]
0
5
10
15
20
25
30
35
Q [US gpm]0 5 10 15 20 25 30 35 40 45 50
eta
[%]
0
20
40
60
80
100
MAGNA 32-100 F, 60Hz
100 %
90 %
80 %
70 %
60 %
50 %
40 %
31 %
Pumped liquid = Water
Liquid temperature = 68 °F
Density = 62.29 lb/ft³
P1
[W]
0
50
100
1/6

Submittal Data
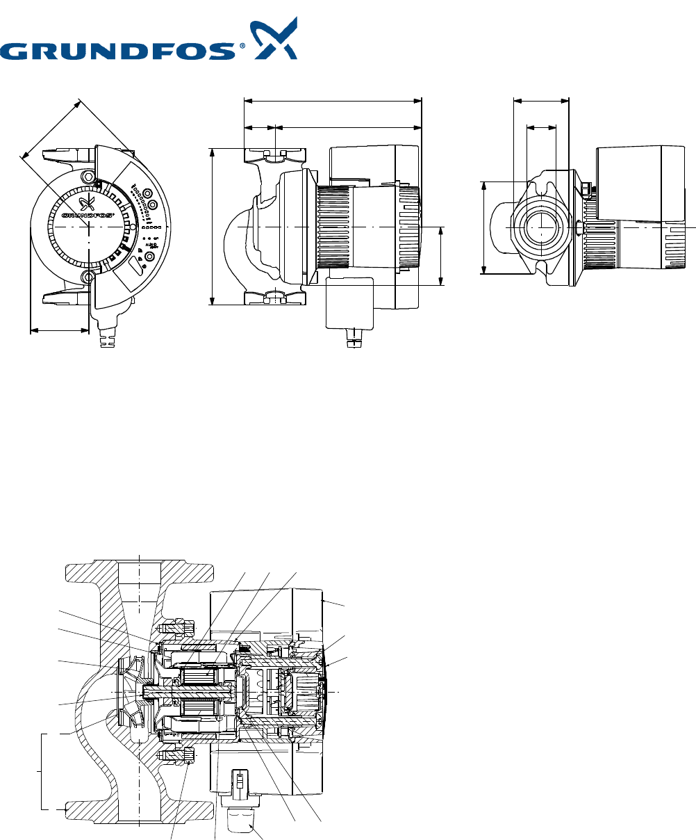
3 3/8"
2 3/8"
7 3/8"
1 1/4" 6 1/8"
6 1/2"
3 7/8"
2 1/4"
1 1/4"
2 3/8"
18126
109
59
49
153
148
12
76
6
45
50
172 55
26a
163
72a
158a
Materials:
Pump housing: Cast iron
EN-GJL250
AISI A48 CL35
ASTM EN-GJL250
Impeller: Stainless steel
DIN W.-Nr. 1.4301
AISI 304
2/6

Printed from Grundfos CAPS [2013.05.046]
98071396 MAGNA 32-100 F 60 Hz
H
[ft]
0
5
10
15
20
25
30
35
Q [US gpm]0 5 10 15 20 25 30 35 40 45 50
eta
[%]
0
20
40
60
80
100
MAGNA 32-100 F, 60Hz
100 %
90 %
80 %
70 %
60 %
50 %
40 %
31 %
Pumped liquid = Water
Liquid temperature = 68 °F
Density = 62.29 lb/ft³
P1
[W]
0
20
40
60
80
100
120
140
160
180
3/6

Printed from Grundfos CAPS [2013.05.046]
H
[ft]
0
5
10
15
20
25
30
35
Q [US gpm]0 5 10 15 20 25 30 35 40 45
eta
[%]
0
20
40
60
80
100
MAGNA 32-100 F, 60Hz
100 %
90 %
80 %
70 %
60 %
50 %
40 %
31 %
Pumped liquid = Water
Liquid temperature = 68 °F
Density = 62.29 lb/ft³
P1
[W]
0
50
100
150
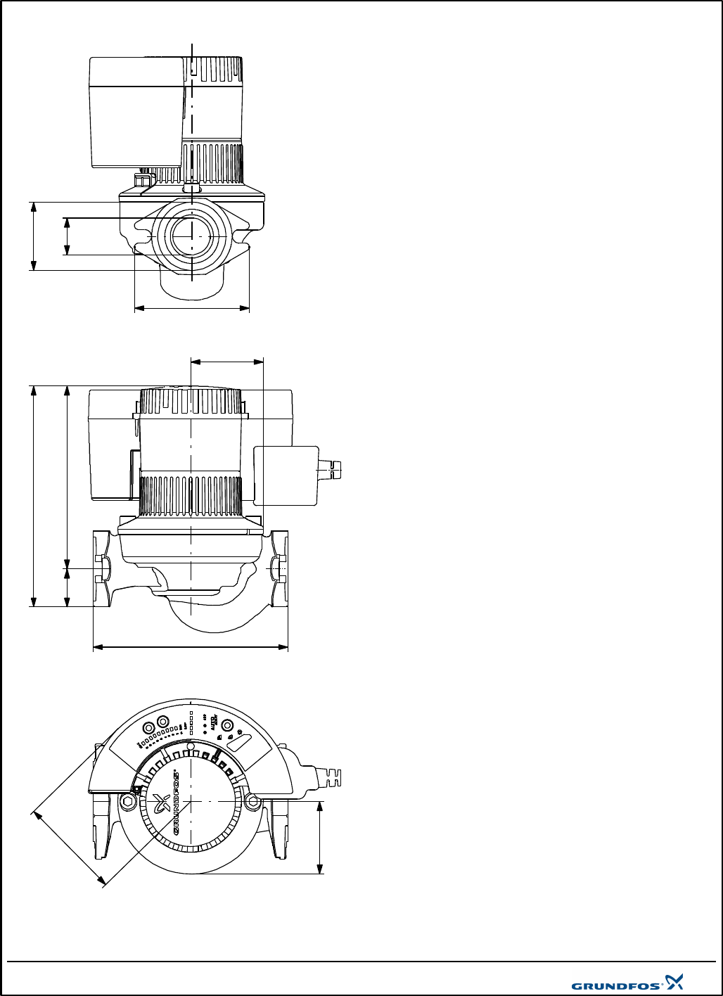
3 3/8"
2 3/8"
7 3/8"
1 1/4" 6 1/8"
6 1/2"
3 7/8"
2 1/4"
1 1/4"
2 3/8"
Description Value
Product name: MAGNA 32-100 F
Product Number: 98071396
EAN number: 5710628443886
Technical:
Head max: 32.8 ft
TF class: 110
Approvals on nameplate: CETLUS
Model: F
Materials:
Pump housing: Cast iron
EN-GJL250
AISI A48 CL35
ASTM EN-GJL250
Impeller: Stainless steel
DIN W.-Nr. 1.4301
AISI 304
Installation:
Range of ambient temperature: 32 .. 104 °F
Maximum operating pressure: 203 psi
Flange standard: GF 15/26
Pipe connection: 1.25"
Pressure stage: 200 PSI
Port-to-port length: 6 1/2 mm
Liquid:
Pumped liquid: Water
Maximum liquid temperature: 201.2 °F
Liquid temp: 68 °F
Density: 62.29 lb/ft³
Electrical data:
Power input - P1: 10 .. 180 W
Maximum current consumption: 0.1 .. 1.23 A
Main frequency: 60 Hz
Rated voltage: 1 x 208-230 V
Enclosure class (IEC 34-5): X4D
Insulation class (IEC 85): F
Controls:
Pos term box: 3H
Others:
Net weight: 12.6 lb
Gross weight: 12.3 lb
Shipping volume: 0.42 ft³
Energy label: A
4/6

Printed from Grundfos CAPS [2013.05.046]
Note! All units are in [mm] unless others are stated.
Disclaimer: This simplified dimensional drawing does not show all details.
98071396 MAGNA 32-100 F 60 Hz
3 3/8"
2 3/8"
7 3/8"
1 1/4" 6 1/8"
6 1/2"
3 7/8"
2 1/4"
1 1/4"
2 3/8"
5/6

Printed from Grundfos CAPS [2013.05.046]
All units are [mm] unless otherwise presented.
98071396 MAGNA 32-100 F 60 Hz
6/6