535561 2 Franklin Electric Subdrive Nema 3R Installation Manual User Sub Drive
User Manual: Pump 535561 2 Franklin Electric Subdrive Nema 3R Installation Manual
Open the PDF directly: View PDF
.
Page Count: 132 [warning: Documents this large are best viewed by clicking the View PDF Link!]

SubDrive15/20/30, MonoDrive, MonoDriveXT NEMA 3R Owner’s Manual
De 226203101
Rev. 0
10.14
9255 Coverdale Road, Fort Wayne, IN 46809
Tel: 260.824.2900 Fax: 260.824.2909
www.franklinwater.com
Owner’s Manual
SubDrive15/20/30
MonoDrive, MonoDriveXT
NEMA 3R

NOTAS:
s WARNING
!
Serious or fatal electrical shock may result from failure to connect the ground terminal to the motor,
SubDrive/MonoDrive controller, metal plumbing, or other metal near the motor or cable, using wire
no smaller than motor cable wires. To minimize risk of electrical shock, disconnect power before
working on or around the SubDrive/MonoDrive system. CAPACITORS INSIDE THE SUBDRIVE/
MONODRIVE CONTROLLER CAN STILL HOLD LETHAL VOLTAGE EVEN AFTER POWER HAS
BEEN DISCONNECTED.
ALLOW 5 MINUTES FOR DANGEROUS INTERNAL VOLTAGE TO DISCHARGE BEFORE REMOVING
SUBDRIVE/MONODRIVE COVER.
Do not use motor in swimming areas.
Before Getting Started
s ATTENTION
!
This equipment should be installed by technically qualied personnel. Failure to install it in compliance
with national and local electrical codes and within Franklin Electric recommendations may result in
electrical shock or re hazard, unsatisfactory performance, or equipment failure. Installation information
is available through pump manufacturers and distributors, or directly from Franklin Electric at our
toll-free number 1-800-348-2420.
s CAUTION
!
Use SubDrive/MonoDrive only with Franklin Electric 4-inch submersible motors as specied in this
manual (see Table 2, pg. 19). Use of this unit with any other Franklin Electric motor or with motors from
other manufacturers may result in damage to both motor and electronics. In applications where water
delivery is critical, a replacement pressure sensor and/or back-up system should be readily available if
the drive fails to operate as intended.
Table of Contents
Before Getting Started ............................................................2
Declaration of Conformity..........................................................4
Specications - MonoDrive/MonoDriveXT.............................................5
Specications - SubDrive15 ........................................................6
Specications - SubDrive20 ........................................................7
Specications - SubDrive30 ........................................................8
Description .....................................................................9
Features and Benets .............................................................9
In the Box......................................................................12
How it Works ...................................................................12
Drive Display ...................................................................13
Location of Drive ................................................................13
Special Considerations for Outdoor Use .............................................14
Wire Routing ...................................................................15
Grounding .....................................................................17
Fuse/Circuit Breaker and Wire Sizing................................................18
Generator Sizing ................................................................19
Tank and Pipe Sizing .............................................................20
Pump Sizing and Performance.....................................................21
• SubDrive15 .................................................................21
• SubDrive20 .................................................................22
• SubDrive30 .................................................................23
• MonoDrive..................................................................24
• MonoDriveXT................................................................24
Installation Procedure ............................................................25
Drive Mounting................................................................25
Drive Wiring ..................................................................27
Drive Conguration ..............................................................30
Basic Setup (DIP Switches)......................................................30
Drive Selection................................................................30
Motor/Pump Size..............................................................31
Underload Sensitivity...........................................................31
Steady Flow Selection..........................................................32
Advanced Setup (Wi-Fi/FE Connect Mobile App) ......................................33
Connecting to Wi-Fi............................................................33
Accessing the Drive............................................................34
Accessories ....................................................................35
Diagnostic Fault Codes...........................................................36
SubDrive Troubleshooting.........................................................38
Limited Warranty ................................................................40

4
SubDrive/MonoDrive
Declaration of Conformity
NATIONAL SANITATION FOUNDATION INFORMATION
The enclosed stainless steel pressure sensor(s) have been evaluated by
Underwriters Laboratories Inc. and found to comply with the low lead
requirements described in NSF/ANSI 61 - Annex G.
UL File: MH18335
MOTOR OVERLOAD PROTECTION NOTE:
The drive electronics provide motor overload protection by preventing motor current from
exceeding the maximum Service Factor Amps (SFA). Motor overtemperature sensing is not
provided by the drive.
BRANCH CIRCUIT PROTECTION
Integral solid state short circuit protection does not provide branch circuit protection.
Branch circuit protection must be provided in accordance with the National Electrical Code
and any additional local codes, or the equivalent. Drive shall be protected by inverse-time
fuse or Circuit breaker only, rated 300 V, maximum 300% of the full-load motor output
current rating as noted in the Fuse/Circuit Breaker and Wire Sizing section below.
Wi-Fi MODULE
The Wi-Fi module has been tested and found to comply with part 15 of FCC Rules.
These limits are designed to provide reasonable protection against harmful interference.
This equipment generates, uses, and can radiate radio frequency energy for limited
periods (approx. 15 min.) and, if the drive is not installed and used in accordance with the
instructions, may cause harmful interference to radio communications. However, there is no
guarantee that interference will not occur in a particular installation. If this equipment does
cause harmful interference to radio or television reception, which can be determined by
turning the equipment off and on, the user is encouraged to try to correct the interference
by one or more of the following measures:
• Reorient or relocate the receiving antenna.
• Increase the separation between the equipment and receiver.
• Connect the equipment into an outlet on a circuit different from that to which
the receiver is connected.
• Consult the dealer or an experienced radio/TV technician for help.
Model No. Model Description A 3Ror/outdoor)
587 020 5003 MonoDrive
587 020 5103 SubDrive15
587 020 5203 MonoDriveXT
587 020 5303 SubDrive20
587 020 5403 SubDrive30
E184902

SubDrive/MonoDrive
5
Specications – MonoDrive/MonoDriveXT
MonoDrive MonoDriveXT
Model No. NEMA 3R
(indoor/outdoor) 587 020 5003 587 020 5203
Input from
Power Source
Voltage 208/230 VAC 208/230 VAC
Phase In Single-Phase Single-Phase
Frequency 60/50 Hz 60/50 Hz
Current (max) 11A 16A
Power Factor ~0.95 ~ 0.95
Power (idle)* 4 W 5 W
Power (max) 2.5 kW 4.2 kW
Wire Gauge Size(s) Consult Federal, State, and Local codes
for branch circuit installations
Consult Federal, State, and Local codes for branch
circuit installations
Output to Motor
Voltage 230 VAC 230 VAC
Phase Out Single-Phase, (3-Wire) Single-Phase, (3-Wire)
Frequency Range 30-63 Hz 30-63 Hz
Current (max) 10.4 A 13.2 A
Wire Gauge Size(s) See pg. 18 for circuit breaker and wire sizing See pg. 18 for circuit breaker and wire sizing
Pressure Setting Factory Preset 50 psi (3.4 bar) 50 psi (3.4 bar)
Adjustment Range 25-80 psi (1.7 - 5.5 bar) 25-80 psi (1.7 - 5.5 bar)
Operating
Conditions(A)
Temperature
(at 230 VAC input) -13 °F to 122 °F (-25 °C to 50 °C) -13 °F to 122 °F (-25 °C to 50 °C)
Relative Humidity 20-95%, non-condensing 20-95%, non-condensing
Controller Size(B)
(approximate) NEMA 3R 9-3/4" x 16-3/4" x 5-1/4" : 20 lbs
(25 x 42.5 x 13 cm) : (9 kg)
9-3/4" x 19-3/4" x 5-1/4" : 26 lbs
(25 x 50 x 13 cm) : (11.8 kg)
For Use With
Pump (60 Hz)
0.5 hp (0.37 kW) pump with 214505-series motor
0.75 hp (0.55 kW) pump with 214507-series motor
1.0 hp (0.75 kW) pump with 214508-series motor
1.0 hp (0.75 kW) pump with 214508-series motor
1.5 hp (1.1 kW) pump with 224300-series motor
2.0 hp (1.5 kW) pump with 224301-series motor
FE Motor
214505-series (0.5 hp, 0.37 kW) single-phase, 3-wire
214507-series (0.75 hp, 0.55 kW) single-phase, 3-wire
214508- series (1.0 hp, 0.75 kW) single-phase, 3-wire
214508-series (1.0 hp, 0.75 kW) single-phase, 3-wire
224300-series (1.5 hp, 1.1 kW) single-phase, 3-wire
224301-series (2.0 hp, 1.5 kW) single-phase, 3-wire
Notes:
(A) Operating temperature is specied at full output power when installed as described in Location of Drive on pg. 13-14.
(B) Refer to pg. 25-26 for detailed Drive Mounting.
* Idle power is dened as input power used by the drive when the drive is not running the motor, the drive fan is off, and no
communication is active. Idle power is increased by 1 W if Wi-Fi is on.

6
SubDrive/MonoDrive
Specications – SubDrive15
SubDrive15
Model No. NEMA 3R (indoor/outdoor) 587 020 5103
Input from
Power Source
Voltage 208/230 VAC
Phase In Single-Phase
Frequency 60/50 Hz
Current (max) 12 A
Power Factor ~ 0.95
Power (idle)*4 W
Power (max) 2.5 kW
Wire Gauge Size(s) Consult Federal, State, and Local codes for branch circuit installations
Output to Motor
Voltage 230 VAC
Phase Out Single-Phase (3-Wire) OR
Three-Phase
Frequency Range
30-77 Hz (3/4 hp, 0.55 kW) pump
30-72 Hz (1 hp, 0.75 kW) pump
30-60 Hz (1.5 hp, 1.1 kW) pump
30-63 Hz (Single-Phase Motors)
Current (max) 5.9 A / phase
Wire Gauge Size(s) See pg. 18 for circuit breaker and wire sizing
Pressure
Setting
Factory Preset 50 psi (3.4 bar)
Adjustment Range 25-80 psi (1.7 and 5.5 bar)
Operating
Conditions(A)
Temperature (at 230 VAC input) -13 °F to 122 °F (-25 °C to 50 °C)
Relative Humidity 20-95%, non-consdensing
Controller Size(B)
(approximate) NEMA 3R 9-3/4" x 19-3/4" x 5-1/4" : 26 lbs
(25 x 50 x 13 cm) : (11.8 kg)
For Use With (C)
Pump (60 Hz)
0.5 hp (0.37 kW) pump with 214505- series motor
0.75 hp (0.55 kW) pump with 214507- series motor
1.0 hp (0.75 kW) pump with 214508- series motor
0.75 hp (0.55 kW), 1.0 hp (0.75 kW), or 1.5 hp (1.1 kW) pump with 234514- series motor
FE Motor
214505- series (0.5 hp, 0.37 kW) single-phase, 3-wire
214507- series (0.75 hp, 0.55 kW) single-phase, 3-wire
214508- series (1.0 hp, 0.75 kW) single-phase, 3-wire
234514- series (1.5 hp, 1.1 kW) three-phase
Notes:
(A) Operating temperature is specied at full output power when installed as described in Location of Drive on pg. 13-14.
(B) Refer to pg. 25-26 for detailed Drive Mounting.
(C) When a SubDrive15 is used with a single-phase 3-wire motor (see drive selection on pg. 30-31), the MonoDrive pump and motor
specications on page 5 apply.
* Idle power is dened as input power used by the drive when the drive is not running the motor, the drive fan is off, and no
communication is active. Idle power is increased by 1 W if Wi-Fi is on.

SubDrive/MonoDrive
7
Notes:
(A) Operating temperature is specied at full output power when installed as described in Location of Drive on pg. 13-14.
(B) Refer to pg. 25-26 for detailed Drive Mounting.
(C) When a SubDrive20 is used with a single-phase 3-wire motor (see drive selection on pg. 30-31), the MonoDrive pump and
motor specications on page 5 apply.
* Idle power is dened as input power used by the drive when the drive is not running the motor, the drive fan is off, and no
communication is active. Idle power is increased by 1 W if Wi-Fi is on.
Specications - SubDrive20
SubDrive20
Model No. NEMA 3R (indoor/outdoor) 587 020 5303
Input from
Power Source
Voltage 208/230 VAC
Phase In Single-Phase
Frequency 60/50 Hz
Current (max) 19 A
Power Factor ~ 0.95
Power (idle)* 5 W
Power (max) 4.2 kW
Wire Gauge Size(s) Consult Federal, State, and Local codes for branch circuit installations
Output to Motor
Voltage 230 VAC
Phase Out Single-Phase (3-Wire) OR
Three-Phase
Frequency Range
30-78 Hz (1 hp, 0.75 kW) pump
30-72 Hz (1.5 hp, 1.1 kW) pump
30-60 Hz (2 hp, 1.5 kW) pump
30-63 Hz (Single-Phase Motors)
Current (max) 8.1 A / phase
Wire Gauge Size(s) See pg. 18 for circuit breaker and wire sizing
Pressure
Setting
Factory preset 50 psi (3.4 bar)
Adjustment Range 25-80 psi (1.7 - 5.5 bar)
Operating
Conditions(A)
Temperature (at 230 VAC input) -13 °F to 122 °F (-25 °C to 50 °C)
Relative Humidity (NEMA 3R) 20-95%, non-condensing
Controller Size(B)
(approximate) NEMA 3R 9-3/4" x 19-3/4" x 5-1/4" : 26 lbs
(25 x 50 x 13 cm) : (11.8 kg)
For Use With(C)
Pump (60 Hz)
1.0 hp (0.75 kW) pump with 214508-series motor
1.5 hp (1.1 kW) pump with 224300-series motor
2.0 hp (1.5 kW) pump with 224301-series motor
0.75 hp (0.55 kW), 1.0 hp (0.75 kW), or 1.5 hp (1.1 kW) pump with 234514-series motor
1.0 hp (0.75 kW), 1.5 hp (1.1 kW), or 2.0 hp (1.5 kW) pump with 234315-series motor
FE Motor
214508-series (1.0 hp, 0.75 kW) single-phase, 3-wire
224300-series (1.5 hp, 1.1 kW) single-phase, 3-wire
224301-series (2.0 hp, 1.5 kW) single-phase, 3-wire
234514-series (1.5 hp, 1.1 kW) three-phase
234315-series (2.0 hp, 1.5 kW) three-phase

8
SubDrive/MonoDrive
Specications - SubDrive30
SubDrive30
Model No. NEMA 3R (indoor/outdoor) 587 020 5403
Input from
Power Source
Voltage 208/230 VAC
Phase In Single-Phase
Frequency 60/50 Hz
Current (max) 23 A
Power Factor ~ 0.95
Power (idle)* 5 W
Power (max) 4.2 kW
Wire Gauge Size(s) Consult Federal, State, and Local codes for branch circuit installations
Output to Motor
Voltage 230 VAC
Phase Out Single-Phase (3-Wire) OR
Three-Phase
Frequency Range
30-78 Hz (1.5 hp, 1.1 kW) pump
30-70 Hz (2 hp, 1.5 kW) pump
30-60 Hz (3 hp, 2.2 kW) pump
30-63 Hz (Single-Phase Motors)
Current (max) 10.9 A / phase
Wire Gauge Size(s) See pg. 18 for circuit breaker and wire sizing
Pressure
Setting
Factory preset 50 psi (3.4 bar)
Adjustment Range 25-80 psi (1.7 - 5.5 bar)
Operating
Conditions(A)
Temperature (at 230 VAC input) -13 °F to 122 °F (-25 °C to 50 °C)
Relative Humidity 20-95%, non-condensing
Controller Size(B)
(approximate) NEMA 3R 9 3/4" x 19 3/4" x 5 1/4" : 26 lbs
(25 x 50 x 13 cm) : (11.8 kg)
For Use With(C)
Pump (60 Hz)
1.0 hp (0.75 kW) pump with 214508-series motor
1.5 hp (1.1 kW) pump with 224300-series motor
2.0 hp (1.5 kW) pump with 224301-series motor
0.75 hp (0.55 kW), 1.0 hp (0.75 kW), or 1.5 hp (1.1 kW) pump with 234514-series motor
1.0 hp (0.75 kW), 1.5 hp (1.1 kW), or 2.0 hp (1.5 kW) pump with 234315-series motor
1.5 hp (1.1 kW), 2.0 hp (1.5 kW), or 3.0 hp (2.2 kW) pump with 234316-series motor
FE Motor Rating
214508-series (1.0 hp, 0.75 kW) single-phase, 3-wire
224300-series (1.5 hp, 1.1 kW) single-phase, 3-wire
224301-series (2.0 hp, 1.5 kW) single-phase, 3-wire
234514-series (1.5 hp, 1.1 kW) three-phase
234315-series (2.0 hp, 1.5 kW) three-phase
234316-series (3.0 hp, 2.2 kW) three-phase
Notes:
(A) Operating temperature is specied at full output power when installed as described in Location of Drive on pg. 13-14.
(B) Refer to pg. 25-26 for detailed Drive Mounting.
(C) When a SubDrive30 is used with a single-phase 3-wire motor (see drive selection on pg. 29-31), the MonoDrive pump and motor
specications on page 5 apply.
* Idle power is dened as input power used by the drive when the drive is not running the motor, the drive fan is off, and no
communication is active. Idle power is increased by 1 W if Wi-Fi is on.
SubDrive/MonoDrive
9
Description and Features
Description
The Franklin Electric SubDrive/MonoDrive is a variable frequency controller that uses
advanced electronics to protect the motor and enhance the performance of standard
pumps used in residential and light commercial water system applications. When used
with Franklin Electric motors (see Table 2 on Page 19), the SubDrive/MonoDrive provides
constant “city-like” water pressure by eliminating the effects of pressure cycling associated
with conventional water well systems.
Features and Benets
Constant Water Pressure
The Franklin Electric SubDrive/MonoDrive provides consistent pressure regulation using
advanced electronics to drive a standard motor and pump according to the pressure
demands indicated by a highly accurate, heavy-duty, long-life pressure sensor. By
adjusting the motor/pump speed, the SubDrive/MonoDrive can deliver constant pressure
dependably, even as water demand changes. For example, a small demand on the system,
such as a bathroom faucet, results in the motor/pump running at a relatively low speed. As
greater demands are placed on the system, such as opening additional faucets or using
appliances, the speed increases accordingly to maintain the desired system pressure.
Using the provided pressure sensor, system pressure can be set in the range of 25 – 80 psi
(1.7 – 5.5 bar).
Reduced Tank Size
Conventional systems use larger tanks in order to store water, whereas SubDrive systems
utilize a smaller tank in order to maintain constant pressure. See Table 3 on page 20 for
pressure tank size requirements.
Reduced Pump Size
SubDrive/MonoDrive controllers t the pump to the application by adjusting the speed of
the pump and motor. In SubDrive applications a pump with a power rating of half the motor
power rating can be used when properly sized. See pump sizing information on page 21.
Over Temperature Foldback
SubDrive/MonoDrive controllers are designed for full power operation in ambient
temperatures up to 122 °F (50 °C) at nominal input voltage. In extreme thermal conditions,
the controller will reduce output power in an attempt to avoid shutdown and potential
damage while still trying to provide water. Full output power is restored when the internal
controller temperature cools to a safe level.
10
SubDrive/MonoDrive
Adjustable Underload Sensitivity
The SubDrive/MonoDrive controller is congured at the factory to ensure detection of
Underload faults in a wide variety of pumping applications. In rare cases (as with certain
pumps in shallow wells) this trip level may result in nuisance faults. If the pump is installed
in a shallow well, activate the controller and observe system behavior. Once the controller
begins to regulate pressure, check operation at several ow rates to make sure the default
sensitivity does not induce nuisance Underload trips. See Basic Set-up section on page 30
for details regarding the Underload Potentiometer.
System Run Relay
The SubDrive/MonoDrive is tted with a relay output that activates (normally-open contact
will close) whenever the system is actively pumping. Both normally-open (NO) and
normally-closed (NC) contacts are provided. The contacts are rated 5 A at 250 VAC/30
VDC for general purpose loads, or 2A at 250 VAC/30VDC for inductive loads (i.e. relay).
It is not recommended to use this function relay to control critical systems (chemical
dosing, etc.)
Motor Soft Start
Normally, when there is a demand for water, the SubDrive/MonoDrive will be operating
to accurately maintain system pressure. Whenever the SubDrive/MonoDrive detects that
water is being used, the controller always “ramps up” the motor speed while gradually
increasing voltage, resulting in a cooler motor and lower start-up current compared to
conventional water systems. In those cases where the demand for water is small, the
system may cycle on and off at low speed. Due to the controller’s soft-start feature and the
sensor’s robust design, this will not harm the motor or the pressure sensor.
Power Factor Correction
Active Power Factor Correction (PFC) minimizes input RMS current by allowing the drive
to draw a cleaner, sinusoidal input current waveform. This allows for a reduction in input
power cable size when compared to similar applications without power factor correction,
because less average current is used by the drive for a given load when compared to non-
PFC devices.
Wi-Fi and FE Connect Mobile App
Wi-Fi connectivity is included in the drive to enable a connection to be made between the
drive and a single Wi-Fi capable device (smartphone, tablet, etc.). This connection can
be used in order to adjust advanced settings, monitor drive characteristics, and view fault
history when using the FE Connect mobile app. See the Advanced Set-up section on page
33 of this manual for more details regarding the capabilities of the Wi-Fi connection.
Adjustable Underload Off Time
The Underload Off Time determines how long the drive will wait before attempting to run
following an Underload event. The default time is 5 minutes, but is user-adjustable through
the Wi-Fi interface from 1 minute to 48 hours.
SubDrive/MonoDrive
11
System Diagnostics Fault History
In addition to regulating pump pressure and accurately controlling motor operation,
the SubDrive/MonoDrive continuously monitors system performance and can detect a
variety of abnormal conditions. In many cases, the controller will compensate as needed
to maintain continuous system operation; however, if there is a high risk of equipment
damage, the controller will protect the system and display the fault condition. If possible,
the controller will try to restart itself when the fault condition subsides. Each time a fault is
detected in the system, the drive records the fault and the elapsed run-time when the fault
was detected. A maximum of 500 events are recorded and can be viewed using the
Wi-Fi connection.
Ground Fault Detection
The drive is equipped with Ground Fault Protection for the motor output. In the event that
a current leak to ground is detected on the motor output, the drive will indicate a Ground
Fault (Fault Code F16). See the Diagnostic Fault Codes table at the end of the instruction
manual for more information.
Adjustable Bump Modes
Using the Advanced Setup (Wi-Fi and FE Connect App), the bump mode and tank size
settings of the drive can be changed. Bump mode controls how hard the drive will pump
for the very short time period just before attempting to shut down. The drive ships with
default settings that are compatible with the majority of SubDrive applications. For
applications with large pressure tanks or trouble shutting down, the bump mode can be
modied to be more aggressive. The system behavior should be monitored when adjusting
these settings to ensure proper operation.
Replaceable Parts
Cooling Fan
In the event that the cooling fan fails and results in an occurrence of frequent Overheated
Drive faults (Fault Code F7), the fan is able to be replaced. See Accessories section for
information regarding NEMA 3R Fan Replacement kits.
Pressure Input Board
In the event that a lightning strike creates a surge on the pressure sensor input to the drive,
the Pressure Input Board can become damaged causing the drive to not operate. Rather
than replacing the entire drive, the Pressure Input Board can be replaced in an attempt to
repair the drive. See the Accessories section for information regarding the Pressure Sensor
Input Board Replacement kit.

12
SubDrive/MonoDrive
Pressure
Sensor
Leads
Power Supply
from Circuit Breaker
PUMP
MOTOR
A
D
BC
Pressure
Relief Valve
Pressure Sensor
Pressure Sensor must be
installed in the upright and
vertical position with the
rubber boot installed.
Power to Motor
In the Box
A. Controller Unit
B. Pressure Sensor and Boot
C. Sensor Adjustment Tool
D. Sensor Cable
E. Installation Guide
F. Strain Relief Fitting
How it Works
The Franklin Electric SubDrive/MonoDrive is designed to be part of a system that consists of
only four (4) components:
A. Standard Pump and Franklin Electric Motor
B. SubDrive/MonoDrive Controller
C. Small Pressure Tank (see Table 3, page 20)
D. Franklin Electric Pressure Sensor (NSF 61 approved)
SubDrive15/20/30
MonoDrive, MonoDriveXT
Owner’s Manual
SubDrive/MonoDrive
13
Drive Display
System Idle
When the SubDrive/MonoDrive unit is powered on and idle (not pumping water), the
display will be illuminated and “- - -“ will be shown.
Drive Running
When the SubDrive/MonoDrive unit is controlling the motor and pump, the display will be
illuminated and the frequency of the motor/pump (in Hertz, or cycles per second) will be
shown on the display.
Fault Detected
When a fault condition is detected in the system, the drive display will illuminate red and
the fault code will be displayed. All fault codes begin with "F" and followed by a one- or
two-digit number. Consult the Diagnostic Fault Codes table in the back of this manual for
more information.
Location of Drive
The SubDrive/MonoDrive controller is intended for operation in ambient temperatures from
-13 °F to 122 °F (-25 °C to 50 °C) at 230 VAC input. The following recommendations will
help in selection of the proper location of the controller.
• A tank tee is recommended for mounting the tank, pressure sensor, pressure
gauge, and pressure relief valve at one junction. If a tank tee is not used, the
pressure sensor should be located within 6 feet (1.8 meters) of the pressure tank to
minimize pressure uctuations. There should be no elbows between the tank and
pressure sensor.
• The unit should be mounted on a sturdy supporting structure such as a wall or
supporting post. Please take into account the weight of the unit.
• The electronics inside the SubDrive/MonoDrive are air-cooled. As a result, there
should be at least 6 inches (15.24 cm) of clearance on each side and below the unit
to allow room for air ow.
• The mounting location should have access to 230 VAC electrical supply and to the
submersible motor wiring. To avoid possible interference with other appliances,
please refer to the Wire Routing section of this manual and observe all precautions
regarding power cable routing.

14
SubDrive/MonoDrive
Special Considerations for Outdoor Use
The controller is suitable for outdoor use with a NEMA 3R rating; however, the following
considerations should be made when installing the controller outdoors:
• The unit MUST be mounted vertically with the wiring end oriented downward, and
the cover must be properly secured (also applies to indoor installations).
• The controller shall be mounted on a surface or back plate no smaller than the
outer dimensions of the controller enclosure.
• NEMA 3R enclosures are capable of withstanding downward-directed rain only.
The controller should be protected from hose-directed or sprayed water as well as
blowing rain. Failure to do so may result in controller failure.
• The controller should NOT be placed in direct sunlight or other locations subject to
extreme temperatures or humidity.
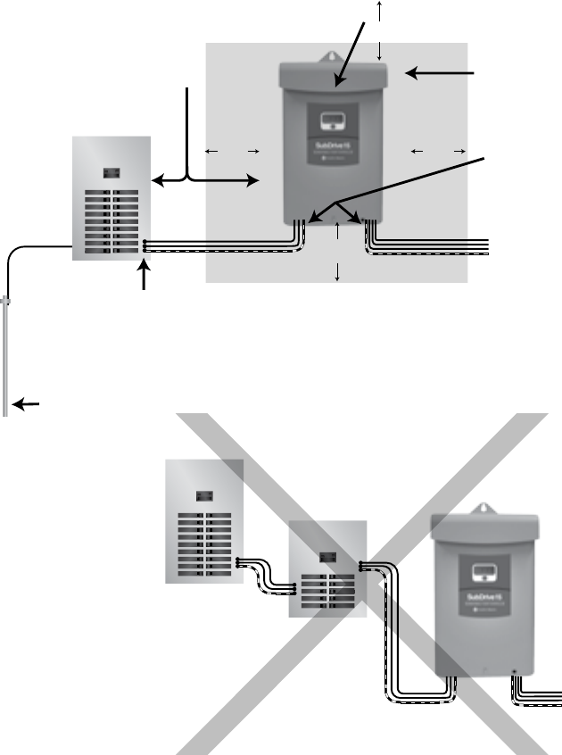
Service Entrance
Panel
Mount drive to a sturdy
supporting structure (wall or back plate).
Mount the drive as close
as possible to the service
entrance panel.
Use a dedicated branch circuit for the drive.
Wire directly from the service entrance panel.
Listed fuse/Listed circuit breaker “See Table 1
on page 18 for fuse and circuit breaker sizing.”
Allow a 6" (15 cm) clearance
around the drive for cooling.
Use the holes and
guides provided.
(DO NOT drill holes
in the drive.)
GND GND
Service entrance ground rod Wire directly to the service
entrance panel.
DO NOT wire to a sub panel
located in a home.
Service Entrance
Panel
IN HOME
Sub Panel
GND
GND GND
6"
15 cm
6"
15 cm
6"
15 cm
6"
15 cm
MOTOR OVERLOAD PROTECTION NOTE:
The drive electronics provide motor overload
protection by preventing motor current from exceeding
the maximum Service Factor Amps (SFA). Motor
overtemperature sensing is not provided by the drive.

SubDrive/MonoDrive
15
Service Entrance
Panel
GND GND
When possible DO NOT run drive input
power or motor wires in parallel with house wiring.
Avoid running out-building wires in parallel with motor wires.
Pump
Motor
GND GND
Input
power Motor
Separate input power and motor
wiring by at least 8" (20.3 cm)
GND
GND
DO NOT run input power
and motor wires together.
Separate by at least 8" (20.3 cm)
Motor
Output lead to motor to
exit house as soon as possible.
8"
20.3 cm
Input
power
Wire Routing
To ensure the best protection from interference with other devices, please observe the
following precautions:
• If the drive is installed in areas where debris and small animals or insects are likely
to enter the drive, an additional Air Screen Kit should be installed. See Accessories
page for ordering information.

16
SubDrive/MonoDrive
Service Entrance
Panel
GND
Motor
TV
Branch 1
Branch 2
Branch 3
8" (20.3 cm) min. 8" (20.3 cm) min.
8" (20.3 cm) min.
Telephone
If it is necessary to run wiring in parallel, keep
drive input power and motor wires
at least 8" (20.3 cm) from other house wiring.
Satellite/
Antenna wire
8" (20.3 cm) min.
GND
Service Entrance
Panel
GND
GND
8" (20.3 cm) min. 90º
OK
Cross over other branch circuits
and house wiring at 90º.
8" (20.3 cm) min.

SubDrive/MonoDrive
17
Grounding
To ensure safety and performance, please observe the following grounding requirements:
Ensure that a
proper utility
ground rod
is present &
connected.
Service entrance
ground rod
Service Entrance
Panel
GND GND
L2
L1
An input power ground wire from
the supply panel must be connected
to the drive.
A dedicated output ground wire
from the drive must be connected
to the motor (motor wires and ground
wires must be bundled together).
Pump
Motor
Service Entrance
Panel
GND GND
Avoid multiple ground paths.
GND
GND
Pump
Motor
GND

18
SubDrive/MonoDrive
Fuse/Circuit Breaker and Wire Sizing
The Listed fuse/Listed circuit breaker size and maximum allowable wire lengths for connection to
the SubDrive/MonoDrive are given in the following tables:
Model Family
Listed Fuse /
Listed Circuit
Breaker Amps
Nominal
Input
Voltage
AWG Copper Wire Sizes, 167 °F (75 °C) Insulation Unless Otherwise Noted
14 12 10 8 6 4 3 2 1 1/0 2/0
MonoDrive 15 208 80 125 205 315 500 790 980 1290 1635 - -
15 230 95 150 250 385 615 970 1200 1580 2000 - -
SubDrive15 15 208 70 110 185 280 450 710 880 1160 1465 - -
15 230 85 135 225 345 550 865 1075 1415 1795 - -
MonoDriveXT 20 208 - 85 140 220 345 550 680 895 1135 - -
20 230 - 105 175 265 425 670 835 1095 1390 - -
SubDrive20 20 208 - - 115 180 285 450 555 730 925 - -
20 230 - 85 140 220 345 550 680 895 1130 - -
SubDrive30 25 208 - - 95 145 235 370 460 605 765 - -
25 230 - - 115 180 285 455 560 740 935 - -
Table 1: Circuit Breaker Sizing and Maximum Input Cable Lengths (in Feet)
Based on a 3% voltage drop
Highlighted Numbers denote wire with 194 °F (90 °C) insulation only
XXXX
Service Entrance
Panel
GND
GND
Use the service
entrance panel
ground ONLY.
DO NOT run ground wire separate.
Motor ground wire MUST be bundled with motor wires.
Pump
Motor

SubDrive/MonoDrive
19
Table 2: Maximum Motor Cable Length (in feet)
Controller Model Franklin Electric
Motor Model HP AWG Copper Wire Sizes, 167
o
F (75
o
C) Insulation
14 12 10 8 6 4
SubDrive15 234 514 xxxx 1.5 (1.1 kW) 420 670 1060 - - -
SubDrive20 234 315 xxxx 2.0 (1.5 kW) 320 510 810 1000 - -
SubDrive30 234 316 xxxx 3.0 (2.2 kW) 240 390 620 990 - -
MonoDrive
214 505 xxxx
214 507 xxxx
214 508 xxxx
0.5 (0.37 kW)
0.75 (0.55 kW)
1.0 (0.75 kW)
400
300
250
650
480
400
1020
760
630
-
1000
990
-
-
-
-
-
-
MonoDriveXT
214 508 xxxx
224 300 xxxx
224 301 xxxx
1.0 (0.75 kW)
1.5 (1.1 kW)
2.0 (1.5 kW)
250
190
190
400
310
250
630
480
390
990
770
620
-
1000
970
-
-
-
NOTE: 1 ft = 0.305 m
A 10-foot (3.05 m) section of cable is provided with the SubDrive/MonoDrive to connect the pressure sensor.
NOTE:
• Maximum allowable wire lengths are measured between the controller and motor.
• Aluminum wires should not be used with the SubDrive/MonoDrive.
• All wiring to comply with the National Electrical Code and local codes.
• MonoDrive minimum breaker amps may be lower than AIM Manual specications for the motors listed
due to the soft-starting characteristic of the MonoDrive controller.
• SubDrive minimum breaker amps may appear to exceed AIM Manual specications for the motors listed
because SubDrive controllers are supplied from a single-phase service rather than three-phase.
• Motor Overload Protection Note: The drive electronics provide motor overload protection by preventing
motor current from exceeding the maximum Service Factor Amps (SFA). Motor overtemperature sensing
is not provided by the drive.
Generator Sizing
Basic generator sizing for the Franklin Electric SubDrive/MonoDrive system is 1.5 times maximum
input watts consumed by the drive, rounded up to the next normal-sized generator.
Recommended minimum generator sizes:
MonoDrive
1/2 hp = 2000 Watts (2 kW)
3/4 hp = 3000 Watts (3 kW)
1 hp = 3500 Watts (3.5 kW)
MonoDriveXT
1.5 hp = 4000 Watts (4 kW)
2 hp = 5000 Watts (5 kW)
SubDrive15 = 3500 Watts (3.5 kW)
SubDrive20 = 5700 Watts (6 kW)
SubDrive30 = 7000 Watts (7 kW)
Note: Not to be used on a Ground Fault Circuit Interrupter (GFCI). If using an externally regulated generator,
verify that the voltage, Hertz and idle speed are appropriate to supply the drive.

20
SubDrive/MonoDrive
Pump Flow Rating Controller Model Minimum Tank Size
Less than 12 gpm (45.4 lpm)
SubDrive15 or MonoDrive 2 gallons (7.6 liters)
SubDrive20 4 gallons (15.1 liters)
SubDrive30 or MonoDriveXT 4 gallons (15.1 liters)
12 gpm (45.4 lpm) and higher
SubDrive15 or MonoDrive 4 gallons (15.1 liters)
SubDrive20 8 gallons (30.3 liters)
SubDrive30 or MonoDriveXT 8 gallons (30.3 liters)
The pressure tank pre-charge setting should be 70% of the system pressure sensor
setting as indicated in Table 4. The minimum supply pipe diameter should be selected
not to exceed a maximum velocity of 8 ft/sec (2.4 m/s) (See Table 5 below for minimum
pipe diameter).
Table 3: Minimum Pressure Tank Size (Total Capacity)
Pressure Gauge
Pressure
Sensor
Pressure
Relief Valve Drain Valve
Pump
Motor
6 ft (1.83 m) max
The pressure tank pre-charge setting should be 70%
of system pressure sensor setting.
Pressure sensor must be installed
in the upright and vertical position
with the rubber boot installed.
PRESSURE SENSOR
Accessories
Pressure Sensor Kit - replacement sensor with 10 ft of 22 AWG cable and sensor adjustment tool: 223 995 901
(SubDrive75/100/150, MonoDrive, MonoDriveXT, SubDrive2W)
Sensor Cable Kit - 100 feet of 22 AWG pressure sensor cable: 223 995 902
(SubDrive75/100/150, MonoDrive, MonoDriveXT, SubDrive2W)
Pressure Sensor Kit - replacement sensor, pressure shut-off switch with 10 ft of 22 AWG cable and sensor
adjustment tool: 225 495 901 (SubDrive300)
Sensor Cable Kit - 100 ft of 22 AWG pressure sensor and pressure shut-off switch cable: 225 495 902 (SubDrive300)
Fan Replacement Kit - refer to Installation Manual, Franklin Electric hotline or www.franklin-electric.com for additional information.
Turn right (clockwise)
to increase pressure setting.
Turn left (counter clockwise)
to decrease pressure setting.
1/4 turn = 3 psi
Pressure sensor (NSF61 rated)
factory preset for 50 psi
Position the pressure sensor
between vertical (preferred)
and horizontal. Do not install
inverted. Not to be placed in
direct sunlight.
7/32" Allen-wrench (provided)
"
Pressure Sensor
Set Point (PSI)
25
30
35
40
45
55
60
65
70
75
80
Pressure Tank
Pre-charge (± 2 PSI)
18
21
25
28
32
35
39
42
46
49
53
56
Pressure Setting Guide
50 (Factory set)
Submersible pumps can
develop very high pressure
in some situations. Always
install a pressure relief
valve able to pass full pump
flow at 100 PSI. Install the
pressure relief valve near
the pressure tank and run
to a drain capable of full
system flow.
WARNING
The pressure sensor
supplied with this controller
must be set between 25
and 80 psi (1.7 and 5.5 bar)
only.
WARNING
(Discharge into drain
rated for max pump
output at relief pressure.)
Maximum Velocity 8 ft/sec. (2.4 m/s)
Min Pipe Dia Max GPM (lpm)
1/2" 4.9 (18.5)
3/4" 11.0 (41.6)
1" 19.6 (74.2)
1-1/4" 30.6 (115.8)
1-1/2" 44.1 (166.9)
2" 78.3 (296.4)
2-1/2" 176.3 (667.4)
Table 4 Table 5
Tank and Pipe Sizing
The SubDrive/MonoDrive needs only a small pressure tank to maintain constant pressure.
(See table below for recommended tank size.) For pumps rated 12 gpm (45.4 lpm) or more,
a slightly larger tank is recommended for optimum pressure regulation. The SubDrive/
MonoDrive can also use an existing tank with a much larger capacity.

SubDrive/MonoDrive
21
Pump Sizing and Performance
SubDrive15
The SubDrive15 is capable of use with 3/4 hp (0.55 kW) pumps that are mounted to 1.5
hp (1.1 kW) Franklin Electric three-phase motors. In general, the SubDrive15 will enhance
the performance of a 3/4 hp (0.55 kW) pump to a similar or better performance than a
conventional 1.5 hp (1.1 kW) pump of the same ow rating (pump series).
To select the proper 3/4 hp
(0.55 kW) pump, rst choose
a 1.5 hp (1.1 kW) curve that
meets the application’s head
and ow requirements. Use the
3/4 hp (0.55 kW) pump in the
same pump series (ow rating).
The SubDrive15 will adjust the
speed of this pump to produce
the performance of the 1.5 hp
(1.1 kW) curve. An EXAMPLE of
this is illustrated in the graph at
right. Please consult the pump
manufacturer’s pump curve for
your specic application.
The SubDrive15 can also be
set up to run a 1.0 hp (0.75 kW)
or 1.5 hp (1.1 kW) pump if desired, but larger pumps will still produce to the 1.5 hp (1.1 kW)
curve and may only be operated with a 1.5 hp (1.1 kW) motor. To operate a different pump
size, a DIP switch must be positioned to select the correct pump rating. Otherwise, the
SubDrive15 may trigger erroneous faults.
See the Basic Set-up section of this manual for DIP switch information and settings.
s WARNING
!
Serious or fatal electrical shock may result from contact with internal electrical components.
DO NOT, under any circumstances, attempt to modify DIP switch settings until power has been
removed and 5 minutes have passed for internal voltages to discharge! Power must be removed
for DIP switch setting to take effect.
EXAMPLE 1
Typical SubDrive15 Performance

22
SubDrive/MonoDrive
SubDrive20
The SubDrive20 is capable of use with 1.0 hp (0.75 kW) pumps that are mounted to 2.0
hp (1.5 kW) Franklin Electric three-phase motors. In general, the SubDrive20 will enhance
the performance of a 1.0 hp (0.75 kW) pump to a similar or better performance than a
conventional 2.0 hp (1.5 kW) pump of the same ow rating (pump series).
To select the proper 1.0 hp
(0.75 kW) pump, rst choose
a 2.0 hp (1.5 kW) curve that
meets the application’s head
and ow requirements. Use
the 1.0 hp (0.75 kW) pump in
the same pump series (ow
rating). The SubDrive20 will
adjust the speed of this pump
to produce the performance of
the 2.0 hp (1.5 kW) curve.
An EXAMPLE of this is
illustrated in the graph at
right. Please consult the pump
manufacturer’s pump curve for
your specic application.
The SubDrive20 can also be set up to run a 1.5 hp (1.1 kW) or 2.0 hp (1.5 kW) pump if
desired, but larger pumps will still produce to the 2.0 hp (1.5 kW) curve and may only be
operated with a 2.0 hp (1.5 kW) motor. To operate a different pump size, a DIP switch must
be positioned to select the correct pump rating. Otherwise, the SubDrive20 may trigger
erroneous faults.
See the Basic Set-up section of this manual for DIP switch information and settings.
s WARNING
!
Serious or fatal electrical shock may result from contact with internal electrical components.
DO NOT, under any circumstances, attempt to modify DIP switch settings until power has been
removed and 5 minutes have passed for internal voltages to discharge! Power must be removed
for DIP switch setting to take effect.
EXAMPLE 2
Typical SubDrive20 Performance

SubDrive/MonoDrive
23
SubDrive30
The SubDrive30 is capable of use with 1.5 hp (1.1 kW) pumps that are mounted to 3.0 hp
(2.2 kW) Franklin Electric three-phase motors. In general, the SubDrive30 will enhance
the performance of a 1.5 hp (1.1 kW) pump to a similar or better performance than a
conventional 3.0 hp (2.2 kW) pump of the same ow rating (pump series).
To select the proper 1.5
hp (1.1 kW) pump, rst
choose a 3.0 hp (2.2
kW) curve that meets
the application’s head
and ow requirements.
Use the 1.5 hp (1.1 kW)
pump in the same pump
series (ow rating). The
SubDrive30 will adjust
the speed of this pump to
produce the performance
of the 3.0 hp (2.2 kW)
curve. An EXAMPLE of this
is illustrated in the graph
at right. Please consult
the pump manufacturer’s
pump curve for your
specic application.
The SubDrive30 can also be set up to run a 2.0 hp (1.5 kW) or 3.0 hp (2.2 kW) pump if
desired, but larger pumps will still produce to the 3.0 hp (2.2 kW) curve and may only be
operated with a 3.0 hp (2.2 kW) motor. To operate a different pump size, a DIP switch must
be positioned to select the correct pump rating. Otherwise, the SubDrive30 may trigger
erroneous faults.
See the Basic Setup section of this manual for DIP switch information and settings.
s WARNING
!
Serious or fatal electrical shock may result from contact with internal electrical components.
DO NOT, under any circumstances, attempt to modify DIP switch settings until power has been
removed and 5 minutes have passed for internal voltages to discharge! Power must be removed
for DIP switch setting to take effect.
EXAMPLE 3
Typical SubDrive30 Performance
24
SubDrive/MonoDrive
MonoDrive
The MonoDrive is designed to convert a conventional 1/2 hp (0.37 kW), 3/4 hp (0.55 kW)
or 1.0 hp (0.75 kW) pump system to a variable speed constant pressure system by simply
replacing the 3-wire control box and pressure switch. Maximum pump output using the
MonoDrive is similar to the performance achieved using a conventional control box.
Therefore, the pump selection criteria are the same as if a control box were used. Please
refer to the pump manufacturer’s literature for details of the pump selection procedure.
If a pump and motor, as described above, are already installed in the system and the
well system components are in good working order, no further system upgrades are
required. However, if the existing pump and motor have not been properly chosen, or if the
components of the well system are not in good working order, the MonoDrive cannot be
used to correct the problem or extend the life of aging components.
Failure to match the conguration to the rating of the pump and motor may trigger
erroneous faults. See the Basic Set-up section of this manual for DIP switch information
and settings.
MonoDriveXT
The MonoDriveXT is designed to convert a conventional 1.0 hp (0.75 kW), 1.5 hp (1.1 kW)
or 2.0 hp (1.5 kW) pump system to a variable speed constant pressure system by simply
replacing the 3-wire control box and pressure switch. Maximum pump output using the
MonoDriveXT is similar to the performance achieved using a conventional control box.
Therefore, the pump selection criteria are the same as if a control box were used. Please
refer to the pump manufacturer’s literature for details of the pump selection procedure.
If a pump and motor, as described above, are already installed in the system and the
well system components are in good working order, no further system upgrades are
required. However, if the existing pump and motor have not been properly chosen, or if the
components of the well system are not in good working order, the MonoDriveXT cannot be
used to correct the problem or extend the life of aging components.
Failure to match the conguration to the rating of the pump and motor may trigger
erroneous faults. See the Basic Set-up section of this manual for DIP switch information
and settings.

SubDrive/MonoDrive
25
Installation Procedure
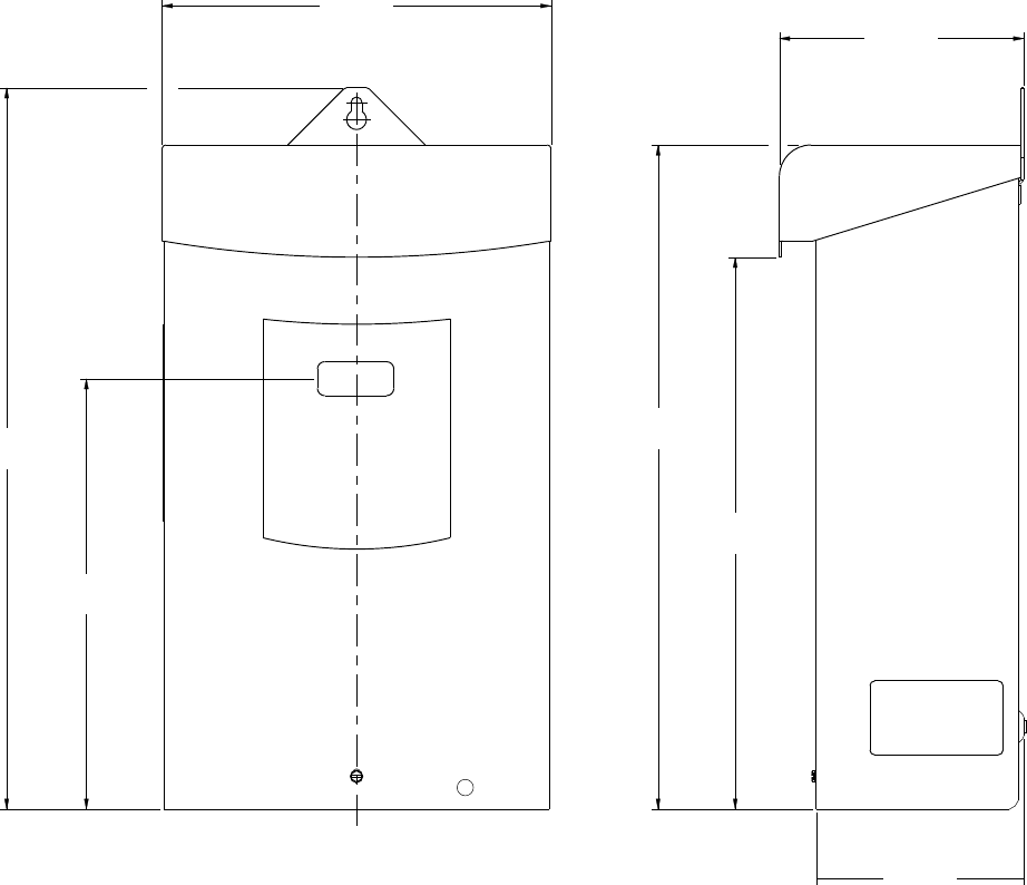
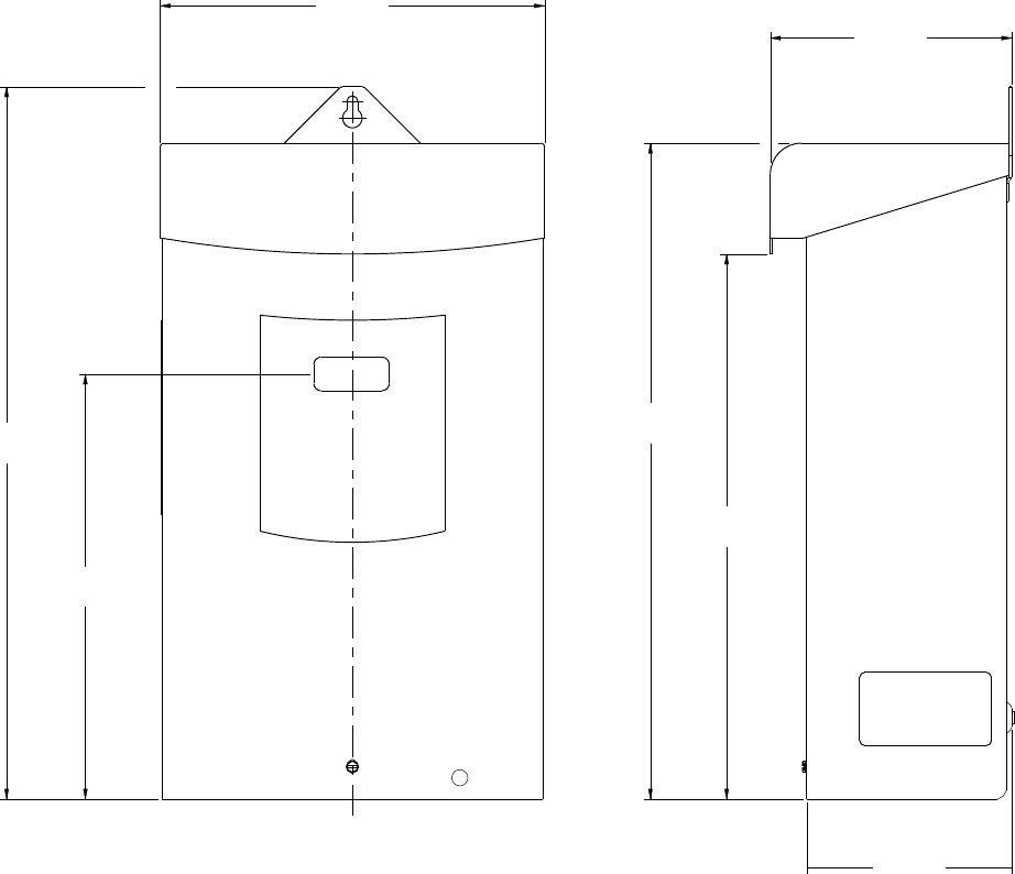
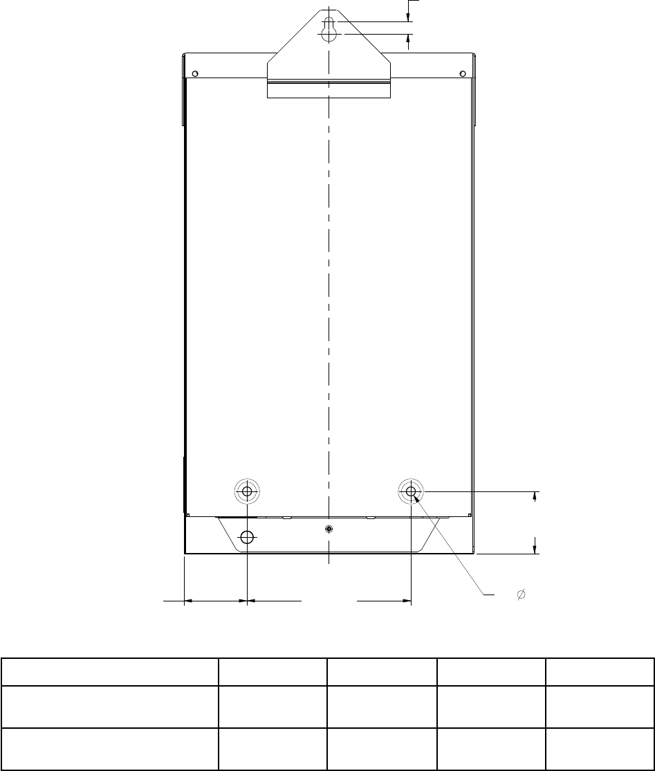
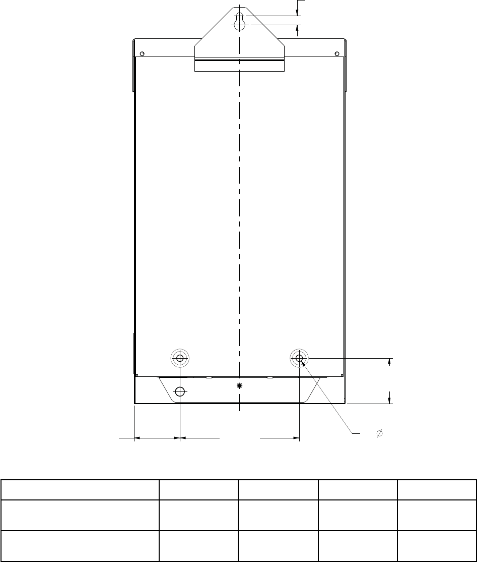
Drive Mounting
The SubDrive/MonoDrive unit should be mounted on a surface or backplate no smaller
than the outer controller dimensions in order to maintain the NEMA 3R rating. The controller
must be mounted at least 18" (45.7 cm) off the ground.
The controller is mounted using the hanging tab on the top side of the enclosure, as well
as two (2) additional mounting holes on the back side of the controller. All three (3) screw
hole locations should be used to ensure the controller is securely mounted to the backplate
or wall.
"B"
"A"
157,4
[6.19]
"C"
"D"
133,9
[5.27]
250,5
[9.86]

26
SubDrive/MonoDrive
MODEL “A” “B” “C” “D”
SubDrive15, MonoDrive 464.2
[18.28]
355.2
[13.98]
454.7
[17.90]
427.4
[16.83]
SubDrive20, SubDrive30, MonoDriveXT 539.4
[21.24]
430.4
[16.94]
529.9
[20.86]
502.6
[19.79]
11
[0.43]
53,2
[2.09]
53,9
[2.12]
140
[5.51]
2X 7,7
[0.31]

SubDrive/MonoDrive
27
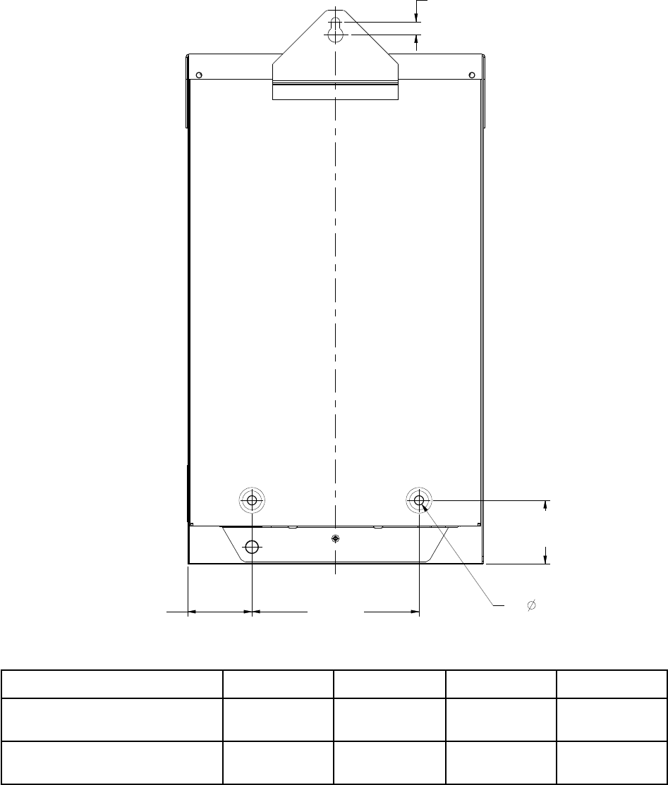
1. Verify that the power has been shut off at the main breaker.
2. Verify that the dedicated branch circuit for the SubDrive/MonoDrive is equipped with a
properly-sized circuit breaker. (See Table 1, pg. 18 for minimum breaker size.)
3. Use appropriate strain relief or conduit connectors. See below for conduit hole and
knockout sizes.
4. Remove the SubDrive/MonoDrive lid.
5. Feed the motor leads through the opening on the bottom right side of the unit and
connect them to the terminal block positions marked (Green Ground Wire), Red,
Yellow and Black.
s WARNING
!
Serious or fatal electrical shock may result from failure to connect the motor, the SubDrive/
MonoDrive, metal plumbing, and all other metal near the motor or cable to the power supply
ground terminal using wire no smaller than motor cable wires. To reduce risk of electrical
shock, disconnect power before working on or around the water system. Do not use motor
in swimming areas.
28,6 HOLE
[1.13]
34.9 KNOCKOUT
[1.37]
[0.5]
HOLE12,7
[1.13]
28.6 KNOCKOUT
]0.88[
HOLE22,2
22,2 KNOCKOUT
[0.88]
47,7
[1.88]
97,7
[3.85]
110,7
[4.36] 97,7
[3.85]
33,6
[1.32]
40,3
[1.59]
198,3
[7.81]
82,3
[3.24]
Drive Wiring

28
SubDrive/MonoDrive
6. Feed the 230 VAC power leads through the larger
opening on the bottom left side of the SubDrive/
MonoDrive controller and connect them to the
terminals marked L1, L2, and .
7. For pressure sensor leads, use the smaller
opening on the bottom of the SubDrive/
MonoDrive unit to the right of the input
power leads. Connect the red and
black leads to the terminals of the terminal block
on the Pressure Input Board marked "Pressure
Sensor" (interchangeable) with a small
screwdriver (provided). Torque the tting as
shown in the gure to the right.
Note: The Pressure Input Board has two (2)
terminals labeled “AUX IN” that can be used to
provide an auxiliary control for the drive. This
connection is in series with the pressure sensor
input signal and is a non-powered connection.
The device connected to this terminal must be a
closed or shorted connection when it is desired
that the drive pump water (if the system pressure
is below the set point pressure of the pressure
sensor). If the “AUX IN” is an open circuit, the
drive will remain in idle mode regardless of
system pressure.
To use the “AUX IN” connections the break-away
tab on the lower-right corner of the Pressure Input
Board must be removed. If the break-away tab is
not removed, the “AUX IN” connections will always
be short circuited. If the break-away tab is removed
and the “AUX IN” terminals are not being used for an
auxiliary device, the “AUX IN” connections must then
be manually short circuited.
See gure to the right for location of this tab. The
Pressure Input Board should be removed from the
drive prior to prying off the break-away tab to prevent
damage to the drive.
s CAUTION
!
For retrot application (i.e. MonoDrive), make sure to check integrity of power and motor leads.
This requires measuring the insulation resistance with the suitable megohmmeter.
* See AIM Manual for specications.
CONTACT:
5A 250VAC
5A30VDC
COIL:12VDC
G68-2114P
-US
12VDC
MADE IN
CHINA
OMRON
COM NC NO
FAN
YELRED BLK
PRESSURE
SWITCH
Tighten terminals to 15 in-lbs.
L2L1
RUN
RELAY
Suitable for use on a circuit capable of
delivering not more than 5000 rms
symmetrical amperes, 250 V maximum.
Use 75 ºC CU wire rate 300 V min.
Installation/Operation manual may
be ordered by contacting your local
Franklin Electric representative.
Tighten terminals to 15 in-lbs.
Use 75 ºC CU wire rated 300 V min
CONTACT:
5A 250VAC
5A30VDC
COIL:12VDC
G68-2114P
-US
12VDC
MADE IN
CHINA
OMRON
SubDrive/MonoDrive
29
Note: A 10-foot (3 m) section of pressure sensor cable is provided with the controller,
but it is possible to use similar 22 AWG wire for distances up to 100 feet (30 m) from the
pressure sensor. A 100-foot (30 m) section of pressure sensor cable is available from your
local Franklin Electric distributor. Low capacitance cable must be used if the pressure
sensor is being connected with cable not supplied by Franklin Electric. Cable length
longer than 100 feet (30 meters) should not be used as it can cause the drive to operate
incorrectly. (See Accessories section on page 35 for details.)
8. Verify that the SubDrive/MonoDrive unit is properly congured for the horsepower
rating of the motor and pump being used. (See the Pump Sizing section on page 26 for
information on Drive Conguration.)
9. Replace the cover. Tighten screw to 10 in-lbs (1.1 Nm).
10. Connect the other end of the pressure sensor cable with the two spade terminals to
the pressure sensor. The connections are interchangeable.
11. Set the pressure tank pre-charge at 70% of the desired water pressure setting. To
check the tank’s pre-charge, de-pressurize the water system by opening a tap with the
drive off. (See Table 4 on page 20.)
Measure the tank pre-charge with a pressure gauge at its ination valve and make the
necessary adjustments.
12. The pressure sensor communicates the system pressure to the SubDrive/MonoDrive
controller. The sensor is preset at the factory to 50 psi (3.4 bar), but can be adjusted by
the installer using the following procedure:
a. Remove the rubber end-cap.
b. Using a 7/32" Allen-wrench (provided), turn the adjusting screw clockwise to
increase pressure and counter-clockwise to decrease pressure. The adjustment
range is between 25 and 80 psi (1.7 and 5.5 bar). Note: 1/4 turn = approximately 3
psi (0.2 bar).
c. Replace the rubber end cap.
d. Cover the pressure sensor terminals with the rubber boot provided (Figure X). Do
not place boot in direct sunlight.

30
SubDrive/MonoDrive
NOTE: Ensure that the system is properly grounded all the way to the service entrance
panel. Improper grounding may result in the loss of voltage surge protection and
interference ltering.
Drive Conguration
Basic Setup (DIP Switches)
For basic set-up, DIP SW1 Position 1 (FE Connect switch) must be in the "OFF" (down)
position for DIP switch and Underload Potentiometer settings to be recognized.
Drive Selection
SubDrives have the ability to perform as MonoDrives when needed (SubDrive15 can be set
as a MonoDrive. SubDrive20 and SubDrive30 can be set as a MonoDriveXT). If you wish
to operate a single-phase motor with a SubDrive unit, ensure that DIP SW1 Position 2 is in
the "ON" (up) position This is indicated by "MD" printed above DIP SW1 Position 2 on the
black shield. If using a SubDrive with a three-phase motor, ensure DIP SW1 Position 2 is in
the "OFF" (down) position, which is indicated by "SD" printed below DIP SW1 Position 2
on the black shield (this is the default setting for SubDrive units).
Note: When operating a SubDrive as a MonoDrive, the MonoDrive pump and motor
specications on Page 5 apply.
s WARNING
!
s CAUTION
!
Serious oR fatal electrical shock may result from contact with internal electrical components.
DO NOT, under any circumstances, attempt to modify DIP switch settings until power has been
removed and 5 minutes have passed for internal voltages to discharge! Power must be removed
for DIP switch setting to take effect.
When increasing the pressure, do not exceed the mechanical stop on the pressure sensor or 80
psi (5.5 bar). The pressure sensor may be damaged.

SubDrive/MonoDrive
31
Select the one (1) DIP switch from SW2 that corresponds to the motor hp being used
and one (1) DIP switch from SW3 that corresponds to the pump hp being used. The
corresponding hp values are printed above the SW2 and SW3 diagrams on the black
shield. Selecting none or more than one switch in either SW2 or SW3 will result in an
Invalid DIP Switch Fault indicated by F24 on the display.
Underload Sensitivity (if needed)
The Underload Sensitivity MUST be adjusted only when the SubDrive/MonoDrive is
POWERED OFF. The new setting will not take effect until the drive is powered up.
The SubDrive/MonoDrive controller is congured at the factory to ensure detection of
Underload faults in a wide variety of pumping applications. In rare cases (as with certain
pumps in shallow wells) this trip level may result in nuisance faults. If the pump is installed
in a shallow well, activate the controller and observe system behavior. Once the controller
begins to regulate pressure, check operation at several ow rates to make sure the default
sensitivity does not induce nuisance Underload trips.
If it becomes necessary to desensitize the Underload trip level, remove power and wait ve
minutes for the controller to discharge. Once the internal voltages have dissipated, locate
the Underload Potentiometer on the upper-right corner of the User Interface Board as
shown in the gure on the next page.
Motor / Pump Size
The SubDrive/MonoDrive can be congured to operate by setting only two (2) DIP
switches; one (1) for the motor size and one (2) for the pump size. The DIP switches are
located on the top of the User Interface board as shown in the gure below.
Note: When operating a SubDrive as a MonoDrive, the MonoDrive pump and motor
specications on page 5 apply.
"HP Values"

32
SubDrive/MonoDrive
Underload Sensitivity: Shallow Set
If the pump is installed in an extremely shallow (i.e. artesian) well and the system
continues to trip, then the Underload Potentiometer (Pot) will need to be adjusted
clockwise to a lower sensitivity setting. Check the Underload trip level and repeat
as necessary.
Underload Sensitivity: Deep Set
In cases where the pump is set very deep, run the system at open discharge to pump
the well down and observe carefully that an Underload is detected properly. If the system
does not trip as it should, then the Underload Pot will need to be adjusted clockwise to a
higher sensitivity setting.
Steady Flow Selection
The SubDrive/MonoDrive controller is congured at the factory to ensure quick response
to maintain constant pressure. In rare cases (as with a water line tap before the pressure
tank), the controller may need to be adjusted to offer better control.
If the controller is used on a system that has a water line tapped before the pressure tank
and close to the well head or where audible speed variations of the PMA can be heard
through the pipes, adjusting the pressure control response time may be necessary. After
enabling this feature, the installer should check ow and pressure changes for possible
overshoot. A larger pressure tank and/or wider margin between regulation and pressure
relief valve pressure may be required as the Steady Flow Features reduce the controller's
reaction time to sudden changes in ow.
If it is necessary to adjust the pressure control, remove power and allow the controller
to discharge. Wait 5 minutes to allow internal voltage to dissipate, locate the DIP switch
marked "SW1". Move DIP SW1 Position 4 to "ON" (up) position.
Underload Sensitivity
Potentiometer

SubDrive/MonoDrive
33
Advanced Setup (Wi-Fi / FE Connect Mobile App)
Some advanced features are able to be modied when connected to the SubDrive/
MonoDrive through Wi-Fi and using the FE Connect mobile app. Follow the instructions
below to connect to the drive and access these advanced settings and features.
Connecting to Wi-Fi
1. The drive’s Wi-Fi radio is only able to be connected to within fteen (15) minutes
following a power-up. If the drive has been powered on for longer than fteen (15)
minutes, cycle power to the SubDrive/MonoDrive unit.
2. After a few seconds of initialization following power-up, the FE Connect light will
illuminate solid to indicate that a connection is available. The FE Connect light is
located just below the clear window of the display.
3. Open the Wi-Fi connection settings on the device you wish to use to connect to the
drive. This is similar to the method used to connect to a normal Wi-Fi hotspot. In
the list of available Wi-Fi connections locate the hotspot named “FECNCT_XXXXX”,
where “XXXXX” is the ending portion of the serial number of the drive being
connected to.
4. Connect to the Wi-Fi hotspot. The FE Connect light on the drive will ash to indicate
that a connection is being made. Only one (1) device can be connected to a drive at
any given time.
Note: The Wi-Fi connection will stay active for an unlimited amount of time as long
as the mobile device is not disconnected from the drive Wi-Fi. If the connection is
broken, the drive Wi-Fi will be available for reconnection for one (1) hour following a
disconnection. If you wish to reconnect to the drive Wi-Fi after an hour has elapsed,
the drive must be power cycled.
s WARNING
!
Serious or fatal electrical shock may result from contact with internal electrical components.
DO NOT, under any circumstances, attempt to modify DIP switch settings until power has been
removed and 5 minutes have passed for internal voltages to discharge! Power must be removed
for DIP switch setting to take effect.
FE Connect Light
34
SubDrive/MonoDrive
Accessing the Drive
After making a successful connection to the drive, launch the FE Connect mobile app.
The FE Connect mobile app can be downloaded from the Apple App Store or Google Play
depending on the device being used.
Set-up
The Set-up screen allows for the set-up of additional features of the drive including:
• Drive Output*
• Motor Size*
• Pump Size*
• Underload Sensitivity*
• Underload Off Time
• Minimum Frequency
• Maximum Frequency
• Bump Mode
• Large Tank Mode
• Aggressive Bump
• Broken Pipe Detection
• Steady Flow*
• Units (hp or kW)
* In order to change and use settings from this page for the Drive Output, Motor Size, Pump
Size, Underload Sensitivity and Steady Flow, the FE Connect DIP switch (SW1, Position 1)
on the drive must be "ON". Otherwise, the drive will default to the Motor Size, Pump Size,
and Underload Sensitivity settings made via the DIP switches and Underload Sensitivity
rotary knob on the drive itself.
Monitoring
This screen allows for real-time monitoring of the system including:
• System Status
• Input Voltage
• Output Voltage
• Output Current
• Motor Speed
• System Information (Drive Model, Hardware Version, Software Version)
Logs
This screen allows the Fault History and Conguration Change History logs to be viewed
and emailed. This page screen also displays the total Drive On Time and Motor Run Time.

SubDrive/MonoDrive
35
Accessory Detail Used with Part Number
Air Screen Kit Assists in preventing insects from entering and damaging
the internal components of the drive All Models 226 550 901
Duplex Alternator Allows a water system to alternate between two parallel
pumps controlled by separate SubDrives All Models 585 001 2000
Filter (Input) Filter used on the input side of drive to help
eliminate interference All Models 225 198 901
Filter (Output) Filter used on the output side of the drive to help
eliminate interference All Models (excluding SD300) 225 300 901
Filter (Surge Capacitors) Capacitor used on the service panel to help eliminate
power interference SD15, SD20, SD30, MD, MDXT 225 199 901
Lightning Arrestor Single-phase (Input Power) Single-phase (Input Power) 150 814 902
NEMA 3R Fan Replacement Kit Replacement fan SD15 and MD 226 545 901
NEMA 3R Fan Replacement Kit Replacement fan SD20, SD30, MDXT 226 545 902
Pressure Sensor
(High: 75-150 psi, NSF 61 rated)
Adjusts pressure in the water system from 75-150 psi
(2-leaded cable) All Models 225 970 901
Pressure Sensor
(Standard Replacement: 25-80 psi,
NSF 61 rated)
Adjusts pressure in the water system from 25-80 psi
(2-leaded cable) All Models 223 995 901
Sensor Cable Kit (indoor) 100 feet of 22 AWG cable (2-leaded cable) SD15, SD20, SD30, MD, and MDXT 223 995 902
Sensor Direct Burial Cable Designed to be run in a trench underground without the
use of conduit to surround it (4-leaded cable)
All Models - 10 ft (3 m)
All Models - 30 ft (9 m)
All Models - 100 ft (30.5 m)
225 800 901
225 800 902
225 800 903
Tank Drawdown Kit Allows the use of water stored in the tank during low
ow demands All Models 225 770 901
Pressure Sensor
Input Board Replacement
Replacement board for drives that have experienced a
surge on the pressure sensor input All Models 226 540 901
Accessories

DIAGNOSTIC FAULT CODES
Power down, disconnect leads to the motor and power up the SubDrive:
- If the SubDrive does not give an “open phase” fault (F5), then there is a problem with the SubDrive.
- Connect the SubDrive to a dry motor. If the motor goes through DC test and gives “underload” fault (F1), the SubDrive is working properly.
TROUBLESHOOTING
QUICK REFERENCE GUIDE
NUMBER OF
FLASHES FAULT POSSIBLE CAUSE CORRECTIVE ACTION
F1 MOTOR UNDERLOAD
- Overpumped well
- Broken shaft or coupling
- Blocked screen, worn pump
- Air/gas locked pump
- SubDrive not set properly for pump end
- Underload Sensitivity setting incorrect
- Frequency near maximum with load less than configured underload sensitivity (Potentiometer or Wi-Fi)
- System is drawing down to pump inlet (out of water)
- High static, light loading pump - reset Potentiometer for less sensitivity if not out of water
- Check pump rotation (SubDrive only) reconnect if necessary for proper rotation
- Air/gas locked pump - if possible, set deeper in well to reduce
- Verify DIP switches are set properly
- Check Underload Sensitivity Setting (Potentiometer or Wi-Fi setting, whichever is applicable)
F2 UNDERVOLTAGE
- Low line voltage
- Misconnected input leads
- Loose connection at breaker or panel
- Line voltage low, less than approximately 150 VAC (normal operating range = 190 to 260 VAC)
- Check incoming power connections and correct or tighten if necessary
- Correct incoming voltage - check circuit breaker or fuses, contact power company
F3 OVERCURRENT /
LOCKED PUMP
- Motor and/or pump misalignment
- Dragging motor and/or pump
- Motor and/or pump locked
- Abrasives in pump
- Excess motor cable length
- Amperage above SFL at 30 Hz
- Remove and repair or replace as required
- Reduce motor cable length. Adhere to Maximum Motor Cable Length table.
F4
(MonoDrive &
MonoDriveXT only)
INCORRECTLY WIRED - MonoDrive only
- Wrong resistance values on main and start
- Wrong resistance on DC test at start
- Check wiring, check motor size and DIP switch setting, adjust or repair as needed
F5 OPEN PHASE
- Loose connection
- Defective motor or drop cable
- Wrong motor
- Open reading on DC test at start.
- Check drop cable and motor resistance, tighten output connections, repair or replace as necessary, use “dry” motor to
check drive functions. If drive will not run and exhibits underload fault replace drive
F6 SHORT CIRCUIT
- When fault is indicated immediately after
power-up, short circuit due to loose connection,
defective cable, splice or motor
- Amperage exceeded 25 amps on DC test at start or SF amps during running
- Incorrect output wiring, phase to phase short, phase to ground short in wiring or motor
- If fault is present after resetting and removing motor leads, replace drive
F7 OVERHEATED DRIVE
- High ambient temperature
- Direct sunlight
- Obstruction of airflow
- Drive heat sink has exceeded max rated temperature, needs to drop below 194 °F (90 °C) to restart
- Fan blocked or inoperable, ambient above 122 °F (50 °C), direct sunlight, air flow blocked
- Replace fan or relocate drive as necessary
- Remove debris from fan intake/exhaust
- Remove and clean optional air screen kit (if installed)
F9 INTERNAL PCB FAULT - A fault was found internal to drive - Contact your Franklin Electric Service Personnel
- Unit may require replacement. Contact your supplier.
F12 OVERVOLTAGE - High line voltage
- Internal voltage too high
- Line voltage high
- Check incoming power connections and correct or tighten if necessary
- If line voltage is stable and measured below 260 VAC and problem persists, contact your Franklin Electric Service Personnel

NUMBER OF
FLASHES FAULT POSSIBLE CAUSE CORRECTIVE ACTION
F14 BROKEN PIPE
- Broken pipe or large leak is detected in the
system
- Drive runs at full power for 10 minutes without
reaching pressure setpoint
- Large water draw, such as a sprinkler system,
does not allow system to reach pressure setpoint
- Check system for large leak or broken pipe
- If the system contains a sprinkler system or is being used to fill a pool or cistern, disable the Broken Pipe Detection
F15
(SD15/20/30 ONLY) PHASE IMBALANCE
- Motor phase currents differ by 20% or more.
- Motor is worn internally
- Motor cable resistance is not equal
- Incorrect motor type setting (single- or three-
phase)
- Check resistance of motor cable and motor windings
- Verify motor type matched drive settings (single- or three-phase)
F16 GROUND FAULT
- Motor output cable is damaged or exposed to
water
- Phase to ground short
- Check motor cable insulation resistance with megger (while not connected to drive). Replace motor cable if needed.
F17 INVERTER
TEMPERATURE
SENSOR FAULT
- Internal temperature sensor is malfunctioning - Contact your Franklin Electric Service Personnel
- If problem persists, unit may require replacement. Contact your supplier.
F18
(SD20/30/MDXT
ONLY)
PFC TEMPERATURE
SENSOR FAULT - Internal temperature sensor is malfunctioning - Contact your Franklin Electric Service Personnel
- If problem persists, unit may require replacement. Contact your supplier.
F19 COMMUNICATION
FAULT
- Cable connection between Display/Wi-Fi Board
and Main Control Board is loose or disconnected
- Internal circuit failure
- Check cable connection between Display/Wi-Fi Board and Main Control Board.
- If problem persists, unit may require replacement. Contact your supplier.
F22 DISPLAY/WI-FI BOARD
EXPECTED FAULT
- Connection between Display/Wi-Fi Board and
Main Control Board was not detected at drive
start-up
- Check cable connection between Display/Wi-Fi Board and Main Control Board.
- If problem persists, unit may require replacement. Contact your supplier.
F23 MAIN BOARD
STARTUP FAULT - A fault was found internal to drive - Contact your Franklin Electric Service Personnel
- Unit may require replacement. Contact your supplier.
F24 INVALID DIP SWITCH
SETTING
- No DIP Switch set or more than one (1) DIP
Switch set for Motor size
- No DIP Switch set or more than one (1) DIP
Switch set for Pump size
- Invalid combination of DIP switches for drive type
(SD or MD mode), Motor hp, and Pump hp.
- Check DIP switch settings
DIAGNOSTIC FAULT CODES
Power down, disconnect leads to the motor and power up the SubDrive:
- If the SubDrive does not give an “open phase” fault (F5), then there is a problem with the SubDrive.
- Connect the SubDrive to a dry motor. If the motor goes through DC test and gives “underload” fault (F1), the SubDrive is working properly.
TROUBLESHOOTING
QUICK REFERENCE GUIDE

TROUBLESHOOTING
QUICK REFERENCE GUIDE
SUBDRIVE TROUBLESHOOTING
CONDITION INDICATOR LIGHTS POSSIBLE CAUSE CORRECTIVE ACTION
NO WATER
NONE - No supply voltage present
- Display board cable disconnected or loose
- Verify cable connection between main control board and display board
- If correct voltage is present, replace drive
GREEN
"---" ON DISPLAY - Pressure sensor circuit
- Verify water pressure is below system set point
- If Pressure Input Board break-away tab is removed, ensure auxiliary device is connected and closed
circuit
- If Pressure Input Board break-away tab is removed and no auxiliary device is being used, manually
short-circuit "AUX IN" connections
- Jumper wires together at pressure sensor; if pump starts, replace sensor
- If pump doesn’t start, check sensor connection at Pressure Input Board; if loose, repair
- If pump doesn’t start, jumper sensor connection at Pressure Input Board. If pump starts, replace wire
- If pump doesn’t start with sensor Pressure Input Board connection jumpered, replace Pressure Input
Board
- If pump doesn't start with new Pressure Input Board, replace drive
RED
FAULT CODE ON DISPLAY - Fault detected - Proceed to fault code description and remedy
GREEN
MOTOR FREQUENCY ON DISPLAY
- Drive and motor are operating
- Loose switch or cable connection
- Incorrect motor or pump settings
- Motor may be running backwards
- Gulping water at pump inlet
- Verify Maximum Frequency setting. If this setting was reduced below maximum value, increase
- Verify motor/pump ratings and match to motor/pump settings on drive (DIP switch or Wi-Fi)
- Verify motor connections
- Frequency max, amps low, check for closed valve, or stuck check valve
- Frequency max, amps high, check for hole in pipe
- Frequency max, amps erratic, check pump operation, dragging impellers
- This is not a drive problem
- Check all connections
- Disconnect power and allow well to recover for short time, then retry
PRESSURE
FLUCTUATIONS
(POOR REGULATION)
GREEN
MOTOR FREQUENCY ON DISPLAY
- Pressure sensor placement and setting
- Pressure gauge placement
- Pressure tank size and pre-charge
- Leak in system
- Air entrainment into pump intake
(lack of submergence)
- Correct pressure and placement as necessary
- Tank may be too small for system flow
- This is not a drive problem
- Disconnect power and check pressure gauge for pressure drop
- Set deeper in the well or tank; install a flow sleeve with airtight seal around drop pipe and cable
- If fluctuation is only on branches before sensor, enable Steady Flow
- Change tank size configuration
RUN ON
WON’T SHUT DOWN
GREEN
MOTOR FREQUENCY ON DISPLAY
- Pressure sensor placement and setting
- Tank pre-charge pressure
- Impeller damage
- Leaky system
- Sized improperly (pump can’t build enough head)
- Check frequency at low flows, pressure setting may be too close to pump max head
- Verify precharge at 70% if tank size is larger than minimum, increase precharge (up to 85%)
- Verify that the system will build and hold pressure
- Enable bump and/or aggressive bump
- Increase minimum frequency
RUNS BUT TRIPS FLASHING RED - Check fault code and see corrective action - Proceed to fault code description and remedy on reverse side

TROUBLESHOOTING
QUICK REFERENCE GUIDE
SUBDRIVE TROUBLESHOOTING
CONDITION INDICATOR LIGHTS POSSIBLE CAUSE CORRECTIVE ACTION
LOW PRESSURE GREEN
MOTOR FREQUENCY ON DISPLAY
- Pressure sensor setting, pump rotation,
pump sizing
- High temperature
- Adjust pressure sensor, check pump rotation
- Check frequency at max flow, check max pressure
- High ambient and/or drive temperature will cause drive to foldback power and run with reduced
performance
HIGH PRESSURE GREEN
MOTOR FREQUENCY ON DISPLAY
- Pressure sensor setting
- Shorted sensor wire
- Adjust pressure sensor
- Remove sensor wire at Pressure Input Board, if drive stops running, wire may be shorted
- Remove sensor wire at Pressure Input Board, if drive continues to run, replace Pressure Input Board
- Remove sensor wire at new Pressure Input Board, if drive continues to run, replace drive
- Verify condition of sensor wire and repair or replace if necessary
AUDIBLE NOISE GREEN
MOTOR FREQUENCY ON DISPLAY - Fan, hydraulic, plumbing
- For excessive fan noise, replace fan
- If fan noise is normal, drive will need to be relocated to a more remote area
- If hydraulic, try raising or lowering depth of pump
- Pressure tank location should be at entrance of water line into house
NO DISPLAY NONE - Display board cable disconnected or loose - Verify cable connection between main control board and display board
CANNOT CONNECT
TO DRIVE WI-FI
FE CONNECT LIGHT ON SOLID - Attempting to connect to incorrect drive
- Out of Wi-Fi range of drive
- Ensure the Wi-Fi SSID (hotspot name) you are connecting to matches the drive you wish to connect to
- Wi-Fi range is 100 feet line-of-site, must be closer to drive if walls or floors are between you and the drive
- Wi-Fi module not responding, cycle power to drive
- Cycle Wi-Fi radio on mobile device, refresh Wi-Fi connection list
FE CONNECT LIGHT OFF - Wi-Fi timeout expired - If more than fifteen (15) minutes since last power cycle, cycle power to drive
- If more than one (1) hour since last disconnection from Wi-Fi, cycle power to drive
RFI-EMI INTERFERENCE GREEN
MOTOR FREQUENCY ON DISPLAY
- Poor grounding
- Wire routing
- Adhere to grounding and wire routing recommendations
- An additional external filter may be needed. See Accessories section for ordering information
LIMITED WARRANTY*
THIS WARRANTY SETS FORTH THE COMPANY’S SOLE OBLIGATION AND PURCHASER’S EXCLUSIVE REMEDY
FOR DEFECTIVE PRODUCT.
Franklin Electric Company, Inc. and its subsidiaries (hereafter “the Company”) warrants that the products accompanied by this warranty
are free from defects in material or workmanship of the Company.
The Company has the right to inspect any product returned under warranty to confirm that the product contains a defect in
material or workmanship. The Company shall have the sole right to choose whether to repair or replace defective equipment,
parts, or components.
The buyer must return the product to an authorized Franklin Electric Distribution outlet for warranty consideration. Returns to the place
of purchase will only be considered for warranty coverage if the place of purchase is an authorized Franklin Electric Distributor at the
time the claim is made. Subject to the terms and conditions listed below, the Company will repair or replace to the buyer any portion of
this product which proves defective due to materials or workmanship of the Company.
The Company will consider products for warranty for 12 months from the date of installation or for 24 months from the date of
manufacture, whichever occurs first.
The Company shall IN NO EVENT be responsible or liable for the cost of field labor or other charges incurred by any customer in
removing and/or affixing any product, part or component thereof.
The Company reserves the right to change or improve its products or any portions thereof without being obligated to provide such
change or improvement to previously sold products.
THIS WARRANTY DOES NOT APPLY TO products damaged by acts of God, including lightning, normal wear and tear,
normal maintenance services and the parts used in connection with such service, or any other conditions beyond the control
of the Company.
THIS WARRANTY WILL IMMEDIATELY VOID if any of the following conditions are found:
1. Product is used for purposes other than those for which it was designed and manufactured;
2. Product was not installed in accordance with applicable codes, ordinances and good trade practices;
3. Product was not installed by a Franklin Certified Contractor; or
4. Product was damaged as a result of negligence, abuse, accident, misapplication, tampering, alteration, improper
installation, operation, maintenance or storage, nor to an excess of recommended maximums as set forth in the
product instructions.
NEITHER SELLER NOR THE COMPANY SHALL BE LIABLE FOR ANY INJURY, LOSS OR DAMAGE, DIRECT, INCIDENTAL OR
CONSEQUENTIAL (INCLUDING, BUT NOT LIMITED TO, INCIDENTAL OR CONSEQUENTIAL DAMAGES FOR LOST PROFITS,
LOST SALES, INJURY TO PERSON OR PROPERTY, OR ANY OTHER INCIDENTAL OR CONSEQUENTIAL LOSS), ARISING OUT
OF THE USE OR THE INABILITY TO USE THE PRODUCT, AND THE BUYER AGREES THAT NO OTHER REMEDY SHALL BE
AVAILABLE TO IT.
THE WARRANTY AND REMEDY DESCRIBED IN THIS LIMITED WARRANTY IS AN EXCLUSIVE WARRANTY AND REMEDY AND IS
IN LIEU OF ANY OTHER WARRANTY OR REMEDY, EXPRESS OR IMPLIED, WHICH OTHER WARRANTIES AND REMEDIES ARE
HEREBY EXPRESSLY EXCLUDED, INCLUDING BUT NOT LIMITED TO ANY IMPLIED WARRANTY OF MERCHANTABILITY OR
FITNESS FOR A PARTICULAR PURPOSE, TO THE EXTENT EITHER APPLIES TO A PRODUCT SHALL BE LIMITED IN DURATION
TO THE PERIODS OF THE EXPRESSED WARRANTIES GIVEN ABOVE.
DISCLAIMER: Any oral statements about the product made by the seller, the Company, the representatives or any other parties, do not
constitute warranties, shall not be relied upon by the buyer, and are not part of the contract for sale. Seller’s and the Company’s only
obligation, and buyer’s only remedy, shall be the replacement and/or repair by the Company of the product as described above. Before
using, the user shall determine the suitability of the product for his intended use, and user assumes all risk and liability whatsoever in
connection therewith.
Some states and countries do not allow the exclusion or limitations on how long an implied warranty lasts or the exclusion or limitation
of incidental or consequential damages, so the above exclusion or limitations may not apply to you. This warranty gives you specific
legal rights, and you may also have other rights which vary from state to state and country to country.
Franklin Electric, in its sole discretion, may update this limited warranty from time to time. Any conflicting information relating to warranty
procedures, whether in a user manual or otherwise, is hereby superseded by this document. Nonetheless, all references to the term, or
length of a warranty term, will remain consistent with the warranty in place at the time of purchase.
*Contact Franklin Electric Co., Inc. Export Division for International Warranty.
NOTES:
NOTES:
NOTES:

Form 226203101
Rev. 0
10.14
9255 Coverdale Road, Fort Wayne, IN 46809
Tel: 260.824.2900 Fax: 260.824.2909
www.franklinwater.com

Manuel du propriétaire
SubDrive15/20/30
MonoDrive, MonoDriveXT
NEMA 3R

s AVERTISSEMENT
!
Le fait de ne pas brancher la borne de mise à la terre au moteur, au contrôleur SubDrive/MonoDrive,
à la plomberie en métal ou à un autre élément métallique à proximité du moteur ou du câble au moyen
d’un l dont le diamètre n’est pas inférieur à celui des ls du câble du moteur peut provoquer une
décharge électrique grave ou mortelle. Pour réduire le risque de décharge électrique, débranchez
l’alimentation avant de travailler sur le système SubDrive/MonoDrive ou à proximité de celui-ci. LES
CONDENSATEURS SITUÉS DANS LE CONTRÔLEUR SUBDRIVE/MONODRIVE PEUVENT ENCORE
CONTENIR UNE TENSION MORTELLE, MÊME APRÈS QUE L’ALIMENTATION AIT ÉTÉ COUPÉE.
ATTENDEZ CINQ MINUTES AVANT DE RETIRER LE COUVERCLE DU SUBDRIVE/MONODRIVE AFIN
DE PERMETTRE AUX TENSIONS INTERNES DANGEREUSES DE SE DISSIPER.
N’utilisez pas le moteur dans les zones de baignade.
Avant de commencer
s ATTENTION
!
Cet équipement doit être installé par une personne qualiée du point de vue technique. Une
installation ne respectant pas les codes de l’électricité nationaux et locaux et les recommandations de
Franklin Electric peut entraîner une décharge électrique, un incendie, un rendement insatisfaisant ou
une défaillance de l’appareil. De l’information sur l’installation est disponible auprès des fabricants et
des distributeurs de pompes, ou directement auprès de Franklin Electric au moyen de notre numéro
sans frais, 1-800-348-2420.
s PRUDENCE
!
Utilisez le SubDrive/MonoDrive uniquement avec des moteurs submersibles Franklin Electric de 10 cm
(4 po), tel que spécié dans ce manuel (consultez le tableau 2 à la page 19). L’utilisation de cette unité
avec un autre moteur Franklin Electric ou avec des moteurs d’autres fabricants pourrait entraîner des
dommages, tant au moteur qu’aux composants électroniques. Dans les applications où la distribution
d’eau est essentielle, un capteur de pression de remplacement ou un système de rechange doivent être
facilement disponibles en cas de défaillance de l’entraînement.
Table des matières
Avant de commencer .............................................................2
Déclaration de conformité .........................................................4
Spécications : MonoDrive/MonoDriveXT.............................................5
Spécications : SubDrive15 ........................................................6
Spécications : SubDrive20 ........................................................7
Spécications : SubDrive30 ........................................................8
Description .....................................................................9
Caractéristiques et avantages ......................................................9
Dans la boîte ...................................................................12
Comment cela fonctionne.........................................................12
Écran de l’entraînement ..........................................................13
Emplacement de l’entraînement....................................................13
Considérations propres à l’utilisation extérieure.......................................14
Acheminement des ls ...........................................................15
Mise à la terre ..................................................................17
Tailles du fusible/disjoncteur et des ls..............................................18
Sélection du générateur ..........................................................19
Sélection du tuyau et du réservoir ..................................................20
Taille et rendement de la pompe ...................................................21
• SubDrive15 .................................................................21
• SubDrive20 .................................................................22
• SubDrive30 .................................................................23
• MonoDrive..................................................................24
• MonoDriveXT ...............................................................24
Procédure d’installation ..........................................................25
Fixation de l’entraînement.......................................................25
Câblage de l’entraînement ......................................................27
Conguration de l’entraînement ....................................................30
Conguration de base (commutateurs DIP) .........................................30
Sélection de l’entraînement......................................................30
Sélection de la pompe et du moteur...............................................31
Sensibilité de sous-charge (au besoin).............................................31
Sélection de débit constant .....................................................32
Conguration avancée (application mobile FE Connect / Wi-Fi) ..........................33
Se connecter au Wi-Fi ..........................................................33
Accéder à l’entraînement .......................................................34
Accessoires ....................................................................35
Codes de défaillance de diagnostic.................................................36
Dépannage du SubDrive..........................................................38
Garantie limitée .................................................................40

4
SubDrive/MonoDrive
Déclaration de conformité
INFORMATION DE LA NATIONAL SANITATION FOUNDATION
Le ou les capteurs de pression en acier inoxydable ci-inclus ont été évalués
par Underwriters Laboratories Inc. et jugés conformes aux exigences de faible
teneur en plomb décrites dans le document NSF/ANSI 61, annexe G.
Fichier UL : MH18335
REMARQUE SUR LA PROTECTION CONTRE LA SURCHARGE DU MOTEUR :
Les composants électroniques de l’entraînement protègent le moteur contre la surcharge
en empêchant le courant dans le moteur de dépasser l’intensité de facteur de charge (SFA)
maximal. La détection d’une surchauffe du moteur n’est pas effectuée par l’entraînement.
PROTECTION DU CIRCUIT DE DÉRIVATION
Une protection intégrée et transistorisée contre les courts-circuits ne protège pas le circuit de
dérivation. La protection de ce dernier doit être assurée conformément au Code national de
l’électricité ainsi qu’aux codes locaux additionnels, ou l’équivalent. L’entraînement doit être
protégé uniquement par un fusible ou disjoncteur de protection à temps inverse, avec une
valeur nominale de 300 V, au maximum 300 % de l’intensité nominale de sortie du moteur à
pleine charge, tel que noté dans la section Tailles du fusible/disjoncteur et des ls ci-dessous.
MODULE Wi-Fi
Le module Wi-Fi a été testé et jugé conforme aux règlements du FCC, partie 15. Ces limites
sont conçues pour fournir une protection raisonnable contre les interférences nuisibles. Cet
équipement produit, utilise et peut propager de l’énergie de fréquence radio pendant des
périodes limitées (environ 15 min) et, si l’entraînement n’est pas installé et utilisé conformément
à ces instructions, peut causer des interférences nuisibles aux communications radio.
Cependant, il n’y a aucune garantie que ces interférences ne se produiront pas dans une
installation particulière. Si cet équipement cause des interférences nuisibles à la réception de la
radio ou de la télévision, ce qui peut être déterminé en éteignant puis en rallumant l’équipement,
l’utilisateur est prié de tenter de corriger les interférences par l’une ou l’autre des mesures
suivantes :
• Réorienter ou déplacer l’antenne de réception.
• Accroître la distance entre l’équipement et le récepteur.
• Connecter l’équipement dans une prise d’un circuit différent de celui utilisé par le
récepteur.
• Consulter le vendeur ou un technicien radio/télévision expérimenté pour de
l’assistance.
Numéro de modèle Description de modèle
587 020 5003 MonoDrive
587 020 5103 SubDrive15
587 020 5203 MonoDriveXT
587 020 5303 SubDrive20
587 020 5403 SubDrive30
E184902

SubDrive/MonoDrive
5
Spécications: MonoDrive/MonoDriveXT
MonoDrive MonoDriveXT
Numéro de
modèle
NEMA 3R
(intérieur/extérieur) 587 020 5003 587 020 5203
Entrée de
l’alimentation
électrique
Tension (V) 208/230 V CA 208/230 V CA
Entrée de phase Monophasé Monophasé
Fréquence 60/50 Hz 60/50 Hz
Intensité (max.) 11 A 16 A
Facteur de
puissance ~ 0,95 ~ 0,95
Puissance (en veille)* 4 W 5 W
Puissance (max.) 2,5 kW 4,2 kW
Taille(s) de calibre
de l
Consultez les codes nationaux, provinciaux et locaux pour
les installations de circuit de dérivation.
Consultez les codes nationaux, provinciaux et locaux pour
les installations de circuit de dérivation.
Sortie vers le
moteur
Tension (V) 230 V CA 230 V CA
Sortie de phase Monophasé (3 ls) Monophasé (3 ls)
Plage de fréquences 30-63 Hz 30-63 Hz
Intensité (max.) 10,4 A 13,2 A
Taille(s) de calibre
de l
Consultez la page 18 pour les tailles des fusibles/
disjoncteurs et des ls
Consultez la page 18 pour les tailles des fusibles/
disjoncteurs et des ls
Réglage de
pression
Préréglé à l’usine 50 psi (3,4 bar) 50 psi (3,4 bar)
Plage de réglage 25-80 psi (1,7 - 5,5 bar) 25-80 psi (1,7 - 5,5 bar)
Conditions de
fonctionnement(A)
Température
(à l'entrée de
230 V CA)
-25 °C à 50 °C (-13 °F à 122 °F) -25 °C à 50 °C (-13 °F à 122 °F)
Humidité relative 20-95 %, sans condensation 20-95 %, sans condensation
Dimensions du
contrôleur(B)
(approximatives)
NEMA 3R 25 x 42,5 x 13 cm : 9 kg
(9-3/4 po x 16-3/4 po x 5-1/4 po) : (20 lb)
25 x 50 x 13 cm : 11,8 kg
(9-3/4 po x 19-3/4 po x 5-1/4 po) : (26 lb)
Pour l’utilisation
avec
Pompe (60 Hz)
Pompe de 0,5 hp (0,37 kW) avec un moteur de la
série 214505
Pompe de 0,75 hp (0,55 kW) avec un moteur de la
série 214507
Pompe de 1,0 hp (0,75 kW) avec un moteur de la
série 214508
Pompe de 1,0 hp (0,75 kW) avec un moteur de la
série 214508
Pompe de 1,5 hp (1,1 kW) avec un moteur de la
série 224300
Pompe de 2,0 hp (1,5 kW) avec un moteur de la
série 224301
Moteur FE
Monophasé (0,5 hp, 0,37 kW) de la série 214505, 3 ls
Monophasé (0,75 hp, 0,55 kW) de la série 214507, 3 ls
Monophasé (1,0 hp, 0,75 kW) de la série 214508, 3 ls
Monophasé (1,0 hp, 0,75 kW) de la série 214508, 3 ls
Monophasé (1,5 hp, 1,1 kW) de la série 224300, 3 ls
Monophasé (2,0 hp, 1,5 kW) de la série 224301, 3 ls
Remarques:
(A) La température de fonctionnement est spéciée pour une puissance de sortie maximale, lorsqu’installé tel que décrit dans la section
Emplacement de l’entraînement, aux pages 13-14.
(B)Consultez les pages 25-26 pour les détails sur la Fixation de l’entraînement.
* La puissance en veille est dénie comme la puissance d’entrée utilisée par l’entraînement lorsque celui-ci n’active pas le moteur, le
ventilateur de l’entraînement est éteint et aucune communication n’est active. La puissance en veille s’accroît de 1W si le Wi-Fi est activé.

6
SubDrive/MonoDrive
Spécications: SubDrive15
SubDrive15
Numéro de
modèle NEMA 3R (intérieur/extérieur) 587 020 5103
Entrée de
l’alimentation
électrique
Tension (V) 208/230 V CA
Entrée de phase Monophasé
Fréquence 60/50 Hz
Intensité (max.) 12 A
Facteur de puissance ~ 0,95
Puissance (en veille)*4 W
Puissance (max.) 2,5 kW
Taille(s) de calibre de l Consultez les codes nationaux, provinciaux et locaux pour les installations de circuit de
dérivation.
Sortie vers le
moteur
Tension (V) 230 V CA
Sortie de phase Monophasé (3 ls) OU
Triphasé
Plage de fréquences
Pompe 30-77 Hz (3/4 hp, 0,55 kW)
Pompe 30-72 Hz (1 hp, 0,75 kW)
Pompe 30-60 Hz (1,5 hp, 1,1 kW)
30-63 Hz (moteurs monophasés)
Intensité (max.) 5,9 A / phase
Taille(s) de calibre de l Consultez la page 18 pour les tailles des fusibles/disjoncteurs et des ls
Réglage de
pression
Préréglé à l’usine 50 psi (3,4 bar)
Plage de réglage 25-80 psi (1,7 - 5,5 bar)
Conditions de
fonctionnement(A)
Température (à l'entrée de 230 V CA) -25 °C à 50 °C (-13 °F à 122 °F)
Humidité relative 20-95 %, sans condensation
Dimensions du
contrôleur(B)
(approximatives)
NEMA 3R 25 x 50 x 13 cm : 11,8 kg
(9 3/4 po x 19 3/4 po x 5 1/4 po) : (26 lb)
Pour l’utilisation
avec(C)
Pompe (60 Hz)
Pompe de 0,5 hp (0,37 kW) avec un moteur de la série 214505
Pompe de 0,75 hp (0,55 kW) avec un moteur de la série 214507
Pompe de 1,0 hp (0,75 kW) avec un moteur de la série 214508
Pompe de 0,75 hp (0,55 kW), de 1,0 hp (0,75 kW) ou de 1,5 hp (1,1 kW) avec un moteur de la
série 234514
Moteur FE
Monophasé (0,5 hp, 0,37 kW) de la série 214505, 3 ls
Monophasé (0,75 hp, 0,55 kW) de la série 214507, 3 ls
Monophasé (1,0 hp, 0,75 kW) de la série 214508, 3 ls
Série 234514 (1,5 hp, 1,1 kW) triphasé
Remarques:
(A) La température de fonctionnement est spéciée pour une puissance de sortie maximale, lorsqu’installé tel que décrit dans la section
Emplacement de l’entraînement, aux pages 13-14.
(B)Consultez les pages 25-26 pour les détails sur la Fixation de l’entraînement.
(C) Lorsqu’un SubDrive15 est utilisé avec un moteur monophasé à 3ls (consultez la sélection de l’entraînement aux pages 30-31), les
spécications de moteur et de pompe MonoDrive à la page5 s’appliquent.
* La puissance en veille est dénie comme la puissance d’entrée utilisée par l’entraînement lorsque celui-ci n’active pas le moteur, le
ventilateur de l’entraînement est éteint et aucune communication n’est active. La puissance en veille s’accroît de 1W si le Wi-Fi est activé.

SubDrive/MonoDrive
7
Remarques:
(A) La température de fonctionnement est spéciée pour une puissance de sortie maximale, lorsqu’installé tel que décrit dans la section
Emplacement de l’entraînement, aux pages 13-14.
(B)Consultez les pages 25-26 pour les détails sur la Fixation de l’entraînement.
(C) Lorsqu’un SubDrive20 est utilisé avec un moteur monophasé à 3ls (consultez la sélection de l’entraînement aux pages 30-31), les
spécications de moteur et de pompe MonoDrive à la page5 s’appliquent.
* La puissance en veille est dénie comme la puissance d’entrée utilisée par l’entraînement lorsque celui-ci n’active pas le moteur, le
ventilateur de l’entraînement est éteint et aucune communication n’est active. La puissance en veille s’accroît de 1W si le Wi-Fi est
activé.
Spécications: SubDrive20
SubDrive20
Numéro de
modèle NEMA 3R (intérieur/extérieur) 587 020 5303
Entrée de
l’alimentation
électrique
Tension (V) 208/230 V CA
Entrée de phase Monophasé
Fréquence 60/50 Hz
Intensité (max.) 19 A
Facteur de puissance ~ 0,95
Puissance (en veille)* 5 W
Puissance (max.) 4,2 kW
Taille(s) de calibre de l Consultez les codes nationaux, provinciaux et locaux pour les installations de circuit de
dérivation.
Sortie vers le
moteur
Tension (V) 230 V CA
Sortie de phase Monophasé (3 ls) OU
Triphasé
Plage de fréquences
Pompe 30-78 Hz (1 hp, 0,75 kW)
Pompe 30-72 Hz (1,5 hp, 1,1 kW)
Pompe 30-60 Hz (2 hp, 1,5 kW)
30-63 Hz (moteurs monophasés)
Intensité (max.) 8,1 A / phase
Taille(s) de calibre de l Consultez la page 18 pour les tailles des fusibles/disjoncteurs et des ls
Réglage de
pression
Préréglé à l’usine 50 psi (3,4 bar)
Plage de réglage 25-80 psi (1,7 - 5,5 bar)
Conditions de
fonctionnement(A)
Température (à l'entrée de 230 V CA) -25 °C à 50 °C (-13 °F à 122 °F)
Humidité relative (NEMA 3R) 20-95 %, sans condensation
Dimensions du
contrôleur(B)
(approximatives)
NEMA 3R 25 x 50 x 13 cm : 11,8 kg
(9 3/4 po x 19 3/4 po x 5 1/4 po) : (26 lb)
Pour l’utilisation
avec(C)
Pompe (60 Hz)
Pompe de 1,0 hp (0,75 kW) avec un moteur de la série 214508
Pompe de 1,5 hp (1,1 kW) avec un moteur de la série 224300
Pompe de 2,0 hp (1,5 kW) avec un moteur de la série 224301
Pompe de 0,75 hp (0,55 kW), de 1,0 hp (0,75 kW) ou de 1,5 hp (1,1 kW) avec un moteur de la
série 234514
Pompe de 1,0 hp (0,75 kW), de 1,5 hp (1,1 kW) ou de 2,0 hp (1,5 kW) avec un moteur de la
série 234315
Moteur FE
Monophasé (1,0 hp, 0,75 kW) de la série 214508, 3 ls
Monophasé (1,5 hp, 1,1 kW) de la série 224300, 3 ls
Monophasé (2,0 hp, 1,5 kW) de la série 224301, 3 ls
Série 234514 (1,5 hp, 1,1 kW) triphasé
Série 234315 (2,0 hp, 1,5 kW) triphasé

8
SubDrive/MonoDrive
Spécications: SubDrive30
SubDrive30
Numéro de
modèle NEMA 3R (intérieur/extérieur) 587 020 5403
Entrée de
l’alimentation
électrique
Tension (V) 208/230 V CA
Entrée de phase Monophasé
Fréquence 60/50 Hz
Intensité (max.) 23 A
Facteur de puissance ~ 0,95
Puissance (en veille)* 5 W
Puissance (max.) 4,2 kW
Taille(s) de calibre de l Consultez les codes nationaux, provinciaux et locaux pour les installations de circuit de
dérivation.
Sortie vers le
moteur
Tension (V) 230 V CA
Sortie de phase Monophasé (3 ls) OU
Triphasé
Plage de fréquences
Pompe 30-78 Hz (1,5 hp, 1,1 kW)
Pompe 30-70 Hz (2 hp, 1,5 kW)
Pompe 30-60 Hz (3 hp, 2,2 kW)
30-63 Hz (moteurs monophasés)
Intensité (max.) 10,9 A / phase
Taille(s) de calibre de l Consultez la page 18 pour les tailles des fusibles/disjoncteurs et des ls
Réglage de
pression
Préréglé à l’usine 50 psi (3,4 bar)
Plage de réglage 25-80 psi (1,7 - 5,5 bar)
Conditions de
fonctionnement(A)
Température (à l'entrée de 230 V CA) -25 °C à 50 °C (-13 °F à 122 °F)
Humidité relative 20-95 %, sans condensation
Dimensions du
contrôleur(B)
(approximatives)
NEMA 3R 25 x 50 x 13 cm : 11,8 kg
(9 3/4 po x 19 3/4 po x 5 1/4 po) : (26 lb)
Pour l’utilisation
avec(C)
Pompe (60 Hz)
Pompe de 1,0 hp (0,75 kW) avec un moteur de la série 214508
Pompe de 1,5 hp (1,1 kW) avec un moteur de la série 224300
Pompe de 2,0 hp (1,5 kW) avec un moteur de la série 224301
Pompe de 0,75 hp (0,55 kW), de 1,0 hp (0,75 kW) ou de 1,5 hp (1,1 kW) avec un moteur de la
série 234514
Pompe de 1,0 hp (0,75 kW), de 1,5 hp (1,1 kW) ou de 2,0 hp (1,5 kW) avec un moteur de la
série 234315
Pompe de 1,5 hp (1,1 kW), de 2,0 hp (1,5 kW) ou de 3,0 hp (2,2 kW) avec un moteur de la
série 234316
Valeurs nominales de moteur FE
Monophasé (1,0 hp, 0,75 kW) de la série 214508, 3 ls
Monophasé (1,5 hp, 1,1 kW) de la série 224300, 3 ls
Monophasé (2,0 hp, 1,5 kW) de la série 224301, 3 ls
Série 234514 (1,5 hp, 1,1 kW) triphasé
Série 234315 (2,0 hp, 1,5 kW) triphasé
Série 234316 (3,0 hp, 2,2 kW) triphasé
Remarques:
(A) La température de fonctionnement est spéciée pour une puissance de sortie maximale, lorsqu’installé tel que décrit dans la section
Emplacement de l’entraînement, aux pages 13-14.
(B)Consultez les pages 25-26 pour les détails sur la Fixation de l’entraînement.
(C) Lorsqu’un SubDrive30 est utilisé avec un moteur monophasé à 3ls (consultez la sélection de l’entraînement aux pages 30-31), les
spécications de moteur et de pompe MonoDrive à la page5 s’appliquent.
* La puissance en veille est dénie comme la puissance d’entrée utilisée par l’entraînement lorsque celui-ci n’active pas le moteur, le
ventilateur de l’entraînement est éteint et aucune communication n’est active. La puissance en veille s’accroît de 1W si le Wi-Fi est activé.
SubDrive/MonoDrive
9
Description et caractéristiques
Description
L’unité SubDrive/MonoDrive de Franklin Electric est un contrôleur à fréquence variable
qui utilise des composants électroniques avancés pour protéger le moteur et améliorer
le rendement des pompes standards utilisées dans les applications de système d’eau
résidentielles et commerciales légères. Lorsqu’utilisé avec des moteurs Franklin Electric
(consultez le tableau 2, p. 19), le contrôleur SubDrive/MonoDrive fournit une pression d’eau
constante de « qualité municipale » en éliminant les effets des cycles de pression associés aux
systèmes de puits d’eau traditionnels.
Caractéristiques et avantages
Pression d’eau constante
L’unité SubDrive/MonoDrive de Franklin Electric fournit une régulation constante de la pression
au moyen de composants électroniques avancés, an d’entraîner un moteur et une pompe
standards conformément aux demandes de pression indiquées par un capteur de pression
durable, robuste et très précis. En réglant le régime du moteur ou de la pompe, le SubDrive/
MonoDrive peut fournir de manière able une pression constante, même lorsque la demande
en eau change. Par exemple, une petite demande du système, comme un robinet de salle de
bain, fait en sorte que le moteur et la pompe tournent à un régime relativement faible. Au fur et
à mesure que des demandes plus grandes sont appliquées au système, comme par l’ouverture
de robinets additionnels ou l’utilisation d’appareils ménagers, le régime s’accroît de manière
proportionnelle pour maintenir la pression du système désirée. Au moyen du capteur de
pression fourni, la pression du système peut être réglée dans la plage 25 - 80 psi (1,7 - 5,5 bar).
Taille réduite du réservoir
Les systèmes traditionnels utilisent des réservoirs plus grands pour stocker de l’eau, alors que
les systèmes SubDrive utilisent un réservoir plus petit an de maintenir une pression constante.
Consultez le tableau 3 à la page 20 pour les exigences en matière de taille de réservoir
pressurisé.
Taille réduite de la pompe
Les contrôleurs SubDrive/MonoDrive font correspondre la pompe à l’application en réglant
le régime de la pompe et du moteur. Dans les applications SubDrive, une pompe avec une
puissance nominale de 50 % de celle du moteur peut être utilisée, lorsque sélectionnée de
manière appropriée. Consultez l’information sur la sélection de pompe à la page 21.
Repli en cas d’excès de température
Les contrôleurs SubDrive/MonoDrive sont conçus pour un fonctionnement à pleine puissance
à des températures ambiantes pouvant atteindre 50 °C (122 °F), à la tension d’entrée nominale.
Dans des conditions thermiques extrêmes, le contrôleur réduit la puissance de sortie an de
tenter d’éviter un arrêt et des dommages potentiels, tout en continuant de fournir de l’eau.
La pleine puissance de sortie est rétablie lorsque la température interne du contrôleur descend
à un niveau sécuritaire.
10
SubDrive/MonoDrive
Sensibilité de sous-charge réglable
Le contrôleur SubDrive/MonoDrive est conguré à l’usine pour assurer la détection des
défaillances de sous-charge dans un large éventail d’applications de pompage. Dans de rares
situations (comme certaines pompes dans des puits peu profonds), ce niveau de déclenchement
peut provoquer des défaillances injustiées. Si la pompe est installée dans un puits peu profond,
activez le contrôleur puis observez le comportement du système. Une fois que le contrôleur
commence à réguler la pression, vériez le fonctionnement à différents débits pour vous assurer
que la sensibilité par défaut ne provoque pas de déclenchements injustiés de sous-charge.
Consultez la section Conguration de base à la page 29 pour des détails concernant le
potentiomètre de sous-charge.
Relais de fonctionnement du système
Le SubDrive/MonoDrive comporte une sortie de relais qui active (le contact normalement ouvert
se ferme) lorsque le système pompe de manière active. Des contacts normalement ouverts (NO)
et normalement fermés (NC) sont fournis. Les contacts acceptent 5 A à 250 V CA / 30 V CC pour
des charges générales ou 2 A à 250 V CA / 30 V CC pour des charges inductives (c.-à-d. un relais).
Il n’est pas recommandé d’utiliser ce relais de fonction pour commander des systèmes
essentiels (dosage chimique, etc.)
Démarrage en douceur du moteur
Normalement, lorsqu’il y a une demande en eau, le SubDrive/MonoDrive fonctionne an
de maintenir de manière précise la pression du système. Lorsque le SubDrive/MonoDrive
détecte que de l’eau est utilisée, le contrôleur « intensie » toujours le régime du moteur tout
en augmentant la tension de manière progressive, pour conserver un moteur plus frais et
une intensité de démarrage plus faible comparativement aux systèmes d’eau traditionnels.
Dans ces cas où la demande en eau est faible, le système peut s’activer et s’éteindre à un
régime faible. En raison de la caractéristique de démarrage en douceur du contrôleur et de la
conception robuste du capteur, cela n’endommage ni le moteur ni le capteur de pression.
Correction du facteur de puissance
La correction active du facteur de puissance (PFC) réduit l’intensité RMS d’entrée en permettant
à l’entraînement d’utiliser une forme sinusoïdale de courant d’entrée plus propre. Cela permet
une réduction de la taille du câble d’alimentation d’entrée, lorsque comparé à des applications
similaires sans correction de facteur de puissance, puisque moins de courant est utilisé en
moyenne par l’entraînement pour une charge donnée, comparé à des appareils sans PFC.
Wi-Fi et application mobile FEConnect
La connectivité Wi-Fi est incluse dans l’entraînement an de permettre l’établissement d’une
connexion entre l’entraînement et un seul appareil prenant Wi-Fi en charge (téléphone intelligent,
tablette, etc.) Cette connexion peut être utilisée an d’effectuer des réglages avancés, de surveiller
les caractéristiques de l’entraînement et de consulter l’historique des défaillances lorsqu’on
utilise l’application mobile FE Connect. Consultez la section Conguration avancée à la page 33
de ce manuel pour plus de détails concernant les possibilités offertes par la connexion Wi-Fi.
Temps de décalage de sous-charge réglable
Le temps de décalage de sous-charge détermine pendant combien de temps l’entraînement attend
avant de démarrer à la suite d’un événement de sous-charge. Le temps par défaut est de 5 min,
mais il est réglable par l’utilisateur à une valeur entre 1 m et 48 h, au moyen de l’interface Wi-Fi.
SubDrive/MonoDrive
11
Historique de défaillance de diagnostic du système
En plus de réguler la pression de la pompe et de surveiller de manière précise le
fonctionnement du moteur, le SubDrive/MonoDrive surveille en continu le rendement du
système et peut détecter toute une gamme de conditions anormales. Dans plusieurs cas,
le contrôleur compense au besoin pour maintenir un fonctionnement continu du système;
cependant, s’il existe un risque élevé de dommages à l’équipement, le contrôleur protège le
système et afche la condition de défaillance. Si possible, le contrôleur tente de se redémarrer
lorsque la condition de défaillance disparaît. Chaque fois qu’une défaillance est détectée dans
le système, l’entraînement enregistre la défaillance et le temps de fonctionnement écoulé au
moment de la défaillance. Un maximum de 500 événements sont enregistrés et peuvent être
consultés au moyen de la connexion Wi-Fi.
Détection de défaut à la terre
L’entraînement est muni d’une protection de défaut à la terre pour la sortie du moteur. Dans
le cas où une fuite de courant vers la terre est détectée sur la sortie du moteur, l’entraînement
indique alors un Défaut à la terre (code de défaillance F16). Pour plus d’information, consultez
le tableau Codes de défaillance de diagnostic à la n de ce manuel d’instruction.
Modes de choc réglables
Au moyen de la Conguration avancée (Wi-Fi et application FE Connect), les réglages de
mode de choc et de taille du réservoir peuvent être modiés. Le mode de choc contrôle à
quel point l’entraînement pompe pour des périodes très courtes avant de tenter de s’arrêter.
L’entraînement est livré avec des réglages par défaut qui sont compatibles avec la plupart des
applications SubDrive. Pour des applications avec des réservoirs pressurisés de grande taille
ou qui présentent des difcultés à s’arrêter, le mode de choc peut être réglé à une valeur plus
agressive. Le comportement du système doit être surveillé lorsque ces réglages sont modiés,
an d’assurer un fonctionnement approprié.
Pièces remplaçables
Ventilateur de refroidissement
Si le ventilateur de refroidissement est défectueux et cause de fréquentes défaillances
d’Entraînement surchauffé (code de défaillance F7), le ventilateur peut être remplacé.
Consultez la section Accessoires pour de l’information concernant les trousses de
remplacement de ventilateur NEMA 3R.
Panneau d’entrée de pression
Si la foudre crée une surtension de l’entrée du capteur de pression vers l’entraînement,
le Panneau d’entrée de pression peut être endommagé et empêcher l’entraînement de
fonctionner. Plutôt que de remplacer l’entraînement au complet, le Panneau d’entrée de
pression peut être remplacé an de réparer l’entraînement. Consultez la section Accessoires
pour de l’information concernant la trousse de remplacement du panneau d’entrée de capteur
de pression.

12
SubDrive/MonoDrive
Fils de
connexion du
capteur de pression
Alimentation électrique
en provenance du
disjoncteur
POMPE
MOTEUR
A
D
BC
Soupape de
surpression
Capteur de pression
Alimentation
vers le moteur
Le capteur de pression
doit être installé en
position droite et verticale,
avec la gaine de
caoutchouc en place.
Dans la boîte
A. Unité contrôleur
B. Capteur de pression et amorce
C. Outil de réglage du capteur
D. Câble du capteur
E. Guide d’installation
F. Raccord de réduction de tension
Comment cela fonctionne
Le contrôleur Franklin Electric SubDrive/MonoDrive est conçu pour faire partie d’un système qui
comprend seulement quatre (4) composants :
A. Pompe standard et moteur Franklin Electric
B. Contrôleur SubDrive/MonoDrive
C. Petit réservoir pressurisé (consultez le tableau 3, page 20)
D. Capteur de pression Franklin Electric (approuvé NSF 61)
SubDrive15/20/30
MonoDrive, MonoDriveXT
Manuel du propriétaire
SubDrive/MonoDrive
13
Écran de l’entraînement
Système en veille
Lorsque l’unité SubDrive/MonoDrive est allumée et en veille (sans pomper d’eau), l’écran est
illuminé et afche « - - - ».
Entraînement en fonction
Lorsque l’unité SubDrive/MonoDrive commande le moteur et la pompe, l’écran est illuminé et
la fréquence du moteur ou de la pompe (en Hz, ou cycles par seconde) est afchée à l’écran.
Défaillance détectée
Lorsqu’une condition de défaillance est détectée dans le système, l’écran de l’entraînement
s’illumine en rouge et le code de défaillance s’afche. Tous les codes de défaillance
commencent par « F », suivi d’un nombre à un ou à deux chiffres. Pour plus d’information,
consultez le tableau Codes de défaillance de diagnostic à la n de ce manuel.
Emplacement de l’entraînement
Le contrôleur SubDrive/MonoDrive est conçu pour fonctionner à des températures ambiantes
de -25 °C à 50 °C (-13 °F à 122 °F) avec une entrée de 230 V CA. Les recommandations
suivantes vous aideront à choisir l’emplacement approprié pour le contrôleur.
• Un raccord en T est recommandé pour xer le réservoir, le capteur de pression, la
jauge de pression et la soupape de surpression à une jonction. Si un raccord en T n’est
pas utilisé, le capteur de pression doit être situé à au plus 1,8 m (6 pi) du réservoir
pressurisé, an de réduire les uctuations de pression. Il ne doit y avoir aucun coude
entre le réservoir et le capteur de pression.
• L’unité doit être xée à une structure de soutien robuste, comme un mur ou un poteau
de soutien. Veuillez tenir compte du poids de l’unité.
• Les composants électroniques dans le SubDrive/MonoDrive sont refroidis à l’air. Par
conséquent, il doit y avoir un dégagement d’au moins 15,24 cm (6 po) de chaque côté
de l’unité ainsi que sous celle-ci, an de permettre à l’air de circuler.
• L’emplacement de xation doit avoir accès à une alimentation électrique de 230 V CA
et au câblage du moteur submersible. Pour éviter toute interférence possible avec
d’autres appareils, veuillez consulter la section Acheminement des ls de ce manuel et
respectez toutes les précautions concernant l’acheminement de câbles d’alimentation.

14
SubDrive/MonoDrive
Considérations propres à l’utilisation extérieure
Le contrôleur est approprié pour les utilisations extérieures avec une homologation NEMA 3R;
cependant, les éléments suivants doivent être considérés si l’on veut installer le contrôleur à
l’extérieur :
• L’unité DOIT être xée à la verticale avec l’extrémité du câblage orientée vers le bas et le
couvercle doit être xé solidement (cela s’applique également aux installations à l’intérieur).
• Le contrôleur doit être xé sur une surface ou une plaque arrière au moins aussi grande
que les dimensions extérieures du boîtier du contrôleur.
• Les boîtiers NEMA 3R ne peuvent résister qu’à la pluie tombant directement à la verticale.
Le contrôleur doit être protégé contre l’eau vaporisée ou projetée par un tuyau, de même
que la pluie balayée par le vent. Sinon, une défaillance du contrôleur pourrait se produire.
• Le contrôleur NE doit PAS être placé à la lumière directe du soleil ou à un autre
emplacement sujet à des conditions extrêmes de température ou d'humidité.
Panneau d’entrée
de service
Fixez l’entraînement à une structure de
soutien solide (mur ou plaque arrière).
Laissez un dégagement de
15 cm (6 po) autour de
l’entraînement, pour permettre
le refroidissement.
Utilisez les trous et les
gabarits fournis.
(NE PERCEZ PAS de trous
dans l’entraînement..)
MISE À LA TERRE MISE À LA TERRE
Tige de mise à la terre de
l’entrée de service Branchez directement au
panneau d’entrée de service.
NE BRANCHEZ PAS
à un sous-panneau situé
dans une résidence.
Panneau d’entrée
de service
DANS UNE
RÉSIDENCE
Sous-panneau
MISE À LA TERRE
MISE À LA TERRE MISE À LA TERRE
6 po
15 cm 6 po
15 cm
6 po
15 cm
6 po
15 cm
REMARQUE SUR LA PROTECTION CONTRE LA
SURCHARGE DU MOTEUR :
Fixez l’entraînement le plus
près possible du panneau
d’entrée de service.
Utilisez un circuit de dérivation séparé pour
l’entraînement. Branchez directement à partir
du panneau d’entrée de service. Fusible
homologué/Disjoncteur homologué « Consultez
le tableau 1 à la page 18 pour déterminer la
taille des fusibles et des disjoncteurs. »
Les composants électroniques de l’entraînement
protègent le moteur contre la surcharge en empêchant le
courant dans le moteur de dépasser l’intensité de facteur
de charge (SFA) maximal. La détection d’une surchauffe
du moteur n’est pas effectuée par l’entraînement.

SubDrive/MonoDrive
15
Panneau d’entrée
de service
MISE À LA TERRE MISE À LA TERRE
Lorsque possible, NE DISPOSEZ PAS les fils
d’alimentation d’entrée d’entraînement ou de moteur
en parallèle avec le câblage de la maison.
Évitez d’acheminer les fils sortant de l’immeuble
en parallèle avec les fils du moteur.
Pompe
Moteur
MISE À LA TERRE MISE À LA TERRE
Alimentation
d’entrée Moteur
Séparez l’alimentation d’entrée et le
câblage du moteur d’au moins 20,3 cm (8 po)
MISE À LA TERRE
MISE À LA TERRE
NE DISPOSEZ PAS
les fils d’alimentation d’entrée
et de moteur ensemble.
Séparez-les d’au moins
20,3 cm (8 po)
Moteur
Le fil de connexion de sortie
vers le moteur doit sortir de la
maison le plus rapidement possible.
20,3 cm
8 po
Alimentation
d’entrée
Acheminement des ls
An d’assurer une protection optimale contre les interférences avec d’autres appareils, veuillez
prendre les précautions suivantes :
• Si l’entraînement est installé dans une emplacement où des débris, de petits animaux
ou des insectes sont susceptibles de pénétrer dans l’entraînement, une trousse de
ltre à air supplémentaire devrait être installée. Consultez la page Accessoires pour de
l’information sur les commandes.

16
SubDrive/MonoDrive
Panneau d’entrée
de service
MISE À LA TERRE
Moteur
Dérivation 1
Dérivation 2
Dérivation 3
20,3 cm (8 po) min. 20,3 cm (8 po) min.
20,3 cm (8 po) min.
Téléphone
S’il est nécessaire d’acheminer le câblage en parallèle, maintenez
les fils du moteur et d’alimentation d’entrée de l’entraînement à au
moins 20,3 cm (8 po) de l’autre câblage de la maison.
Fil de
satellite/antenne
20,3 cm (8 po) min.
MISE À LA TERRE
Télévision
Panneau d’entrée
de service
MISE À LA TERRE
MISE À LA
TERRE
20,3 cm (8 po)
min. 90º
OK
Faites chevaucher le câblage de
la maison et des autres circuits
de dérivation à 90°.
20,3 cm (8 po) min.

SubDrive/MonoDrive
17
Mise à la terre
Pour assurer la sécurité et le rendement, veuillez respecter les exigences suivantes concernant
la mise à la terre :
Tige de mise à la
terre de l’entrée de service
Panneau d’entrée
de service
MISE À LA TERRE MISE À LA TERRE
L2
L1
Pompe
Moteur
Assurez-vous
qu’une tige de
mise à la terre des
services publics
appropriée est
installée et
connectée.
Un fil de mise à la terre de l’alimentation
d’entrée à partir du panneau d’alimentation
doit être connecté à l’entraînement.
Un fil séparé de mise à la terre de
sortie à partir de l’entraînement
doit être branché au moteur (les
fils du moteur et de la mise à la
terre doivent être attachés
ensemble).
Panneau d’entrée
de service
MISE À LA TERRE MISE À LA TERRE
Évitez les chemins multiples de mise à la terre.
MISE À LA TERRE
MISE À LA TERRE
Pompe
Moteur
MISE À LA TERRE

18
SubDrive/MonoDrive
Tailles du fusible/disjoncteur et des ls
Les tableaux suivants présentent les fusibles/disjoncteurs homologués et les longueurs maximales
permises de ls pour la connexion à un SubDrive/MonoDrive :
Famille de
modèle
Intensité (en A) du
fusible/disjoncteur
homologué
Tension
(en V)
d’entrée
nominale
Calibres AWG des ls de cuivre, avec isolation à 75°C (167°F)
sauf mention contraire
14 12 10 8 6 4 3 2 1 1/0 2/0
MonoDrive 15 208 80 125 205 315 500 790 980 1290 1635 - -
15 230 95 150 250 385 615 970 1200 1580 2000 - -
SubDrive15 15 208 70 110 185 280 450 710 880 1160 1465 - -
15 230 85 135 225 345 550 865 1075 1415 1795 - -
MonoDriveXT 20 208 - 85 140 220 345 550 680 895 1135 - -
20 230 - 105 175 265 425 670 835 1095 1390 - -
SubDrive20 20 208 - - 115 180 285 450 555 730 925 - -
20 230 - 85 140 220 345 550 680 895 1130 - -
SubDrive30 25 208 - - 95 145 235 370 460 605 765 - -
25 230 - - 115 180 285 455 560 740 935 - -
Tableau1: Tailles de disjoncteur et longueurs maximales de câble d’entrée (en pi)
En fonction d'une baisse de tension de 3 %
Les nombres surlignés réfèrent à un l avec une isolation à 90 °C (194 °F) seulement
XXXX
Panneau d’entrée
de service
MISE À LA TERRE
MISE À LA TERRE
Utilisez UNIQUEMENT
la mise à la terre du
panneau d’entrée
de service.
N’ACHEMINEZ PAS séparément
Le fil de mise à la terre du moteur DOIT
être attaché aux fils de moteur.
Pompe
Moteur
le fil de mise à la terre.

SubDrive/MonoDrive
19
Tableau2: Longueur maximale de câble de moteur (en pieds)
Modèle de
contrôleur
Modèle de moteur
FranklinElectric HP Calibres AWG des ls de cuivre, avec isolation à 75°C (167°F)
14 12 10 8 6 4
SubDrive15 234 514 xxxx 1,5 (1,1 kW) 420 670 1060 - - -
SubDrive20 234 315 xxxx 2,0 (1,5 kW) 320 510 810 1000 - -
SubDrive30 234 316 xxxx 3,0 (2,2 kW) 240 390 620 990 - -
MonoDrive
214 505 xxxx
214 507 xxxx
214 508 xxxx
0,5 (0,37 kW)
0,75 (0,55 kW)
1,0 (0,75 kW)
400
300
250
650
480
400
1020
760
630
-
1000
990
-
-
-
-
-
-
MonoDriveXT
214 508 xxxx
224 300 xxxx
224 301 xxxx
1,0 (0,75 kW)
1,5 (1,1 kW)
2,0 (1,5 kW)
250
190
190
400
310
250
630
480
390
990
770
620
-
1000
970
-
-
-
REMARQUE : 1 pi = 0,305 m
Un l de 3,05 m (10 pi) est fourni avec le SubDrive/MonoDrive pour connecter le capteur de pression.
REMARQUE :
• Les longueurs maximales permises de ls sont mesurées entre le contrôleur et le moteur.
• Des ls d’aluminium ne doivent pas être utilisés avec le SubDrive/MonoDrive.
• Tout le câblage doit se conformer au Code national de l’électricité ainsi qu’aux codes locaux.
• L’intensité minimale du disjoncteur du MonoDrive peut être inférieure aux spécications du manuel AIM
pour les moteurs listés, en raison des caractéristiques de démarrage en douceur du contrôleur MonoDrive.
• L’intensité minimale du disjoncteur du SubDrive peut sembler dépasser les spécications du manuel AIM
pour les moteurs listés, car les contrôleurs SubDrive sont alimentés avec un service monophasé plutôt
que triphasé.
• Remarque sur la protection contre la surcharge du moteur : Les composants électroniques de l’entraînement
protègent le moteur contre la surcharge en empêchant le courant dans le moteur de dépasser l’intensité de
facteur de charge (SFA) maximal. La détection d’une surchauffe du moteur n’est pas effectuée par l’entraînement.
Sélection du générateur
La puissance de base d’une génératrice pour le système SubDrive/MonoDrive de Franklin Electric
est 1,5 fois la puissance (en W) d’entrée maximale consommée par l’entraînement, arrondie à la
puissance normale suivante de la génératrice.
Puissances minimales recommandées pour une génératrice :
MonoDrive
1/2 hp = 2 000 W (2 kW)
3/4 hp = 3 000 W (3 kW)
1 hp = 3 500 W (3,5 kW)
MonoDriveXT
1,5 hp = 4 000 W (4 kW)
2 hp = 5 000 W (5 kW)
SubDrive15 = 3 500 W (3,5 kW)
SubDrive20 = 5 700 W (6 kW)
SubDrive30 = 7 000 W (7 kW)
Remarque : À ne pas utiliser sur un disjoncteur de fuite de terre (GFCI). Si une génératrice régulée de manière externe
est utilisée, vériez que la tension, la fréquence et le régime en veille sont appropriés pour alimenter l’entraînement.

20
SubDrive/MonoDrive
Débit nominal de pompe Modèle de contrôleur Taille minimale de réservoir
Moins de 45,4 lpm (12 gpm)
SubDrive15 ou MonoDrive 7,6 l (2 gal)
SubDrive20 15,1 l (4 gal)
SubDrive30 ou MonoDriveXT 15,1 l (4 gal)
45,4 lpm (12 gpm) ou plus
SubDrive15 ou MonoDrive 15,1 l (4 gal)
SubDrive20 30,3 l (8 gal)
SubDrive30 ou MonoDriveXT 30,3 l (8 gal)
Le réglage de précharge du réservoir pressurisé devrait être à 70 % du réglage du capteur
de pression du système, tel qu’indiqué dans le tableau 4. Le diamètre minimal de tuyau
d’alimentation devrait être choisi an de ne pas dépasser une vitesse maximale de 2,4 m/s
(8 pi/s). (Consultez le tableau 5 ci-dessous pour le diamètre minimal de tuyau.)
Tableau3: Taille minimale de réservoir pressurisé (capacité totale)
Manomètre
Capteur de
pression
Soupape de surpression Soupape
de drain
Pompe
Moteur
1,83 m (6 pi) max.
Le réglage de précharge du réservoir pressurisé doit être
à 70 % du réglage du capteur de pression du système.
CAPTEUR DE PRESSION
Accessories
Pressure Sensor Kit - replacement sensor with 10 ft of 22 AWG cable and sensor adjustment tool: 223 995 901
(SubDrive75/100/150, MonoDrive, MonoDriveXT, SubDrive2W)
Sensor Cable Kit - 100 feet of 22 AWG pressure sensor cable: 223 995 902
(SubDrive75/100/150, MonoDrive, MonoDriveXT, SubDrive2W)
Pressure Sensor Kit - replacement sensor, pressure shut-off switch with 10 ft of 22 AWG cable and sensor
adjustment tool: 225 495 901 (SubDrive300)
Sensor Cable Kit - 100 ft of 22 AWG pressure sensor and pressure shut-off switch cable: 225 495 902 (SubDrive300)
Fan Replacement Kit - refer to Installation Manual, Franklin Electric hotline or www.franklin-electric.com for additional information.
Point de réglage du
capteur de pression (psi)
25
30
35
40
45
55
60
65
70
75
80
Précharge de réservoir
pressurisé (± 2 psi)
18
21
25
28
32
35
39
42
46
49
53
56
Guide de réglage de pression
50 (réglé à l’usine)
Dans certaines situations, les
pompes submersibles peuvent
développer des pressions très
élevées. Veillez à toujours installer
une soupape de surpression
pouvant soutenir un plein débit de
pompe à une pression de 100 psi.
Installez la soupape de
surpression près du réservoir
pressurisé et connectez-la à un
drain en mesure de supporter le
plein débit du système.
AVERTISSEMENT
Le capteur de pression
fourni avec ce contrôleur
doit être réglé entre 25 et
80 psi (1,7 et 5,5 bar)
seulement.
AVERTISSEMENT
Le capteur de pression doit être
installé en position droite et
verticale, avec la gaine de
caoutchouc en place.
(Le refoulement doit être raccordé à
un drain dont la valeur nominale
permet de recevoir le débit maximal de
la pompe à la pression de sécurité.)
Tournez à droite (dans le sens
horaire) pour accroître le
réglage de pression.
Tournez à gauche (dans le
sens anti-horaire) pour réduire
le réglage de pression.
1/4 tour = 3 psi
Placez le capteur de
pression entre la verticale
(préférable) et l’horizontale.
N’installez pas de manière
inversée. Ne le placez pas à
la lumière directe du soleil.
Clé Allen de 7/32 po (fournie)
Capteur de pression (homologué NSF 61)
préréglé à l’usine pour 50 psi
Vitesse maximale 2,4m/s (8pi/s)
Diam. min. de tuyau GPM (lpm) max.
1/2 po 4,9 (18,5)
3/4 po 11,0 (41,6)
1 po 19,6 (74,2)
1-1/4 po 30,6 (115,8)
1-1/2 po 44,1 (166,9)
2 po 78,3 (296,4)
2-1/2 po 176,3 (667,4)
Tableau4: Tableau5:
Sélection du tuyau et du réservoir
Le SubDrive/MonoDrive ne requiert qu’un petit réservoir pressurisé pour maintenir une pression
constante. (Consultez le tableau ci-dessous pour connaître la taille recommandée de réservoir.)
Pour les pompes d’une capacité nominale de 45,4 lpm (12 gpm) ou plus, un réservoir légèrement
plus grand est recommandé pour assurer une régulation optimale de la pression. Le SubDrive/
MonoDrive peut également utiliser un réservoir existant d’une capacité beaucoup plus grande.

SubDrive/MonoDrive
21
Taille et rendement de la pompe
SubDrive15
Le SubDrive15 peut être utilisé avec des pompes de 3/4 hp (0,55 kW) installées sur des
moteurs triphasés Franklin Electric de 1,5 hp (1,1 kW). En général, le SubDrive15 améliorera
le rendement d’une pompe de 3/4 hp (0,55 kW) pour la rendre équivalente (ou mieux) à une
pompe traditionnelle de 1,5 hp (1,1 kW) avec le même débit nominal (série de pompes).
Pour choisir la pompe de 3/4 hp
(0,55 kW) appropriée, choisissez
d’abord une courbe de 1,5 hp
(1,1 kW) qui satisfait les
exigences de charge hydraulique
et de débit de l’application.
Utilisez la pompe de 3/4 hp
(0,55 kW) dans la même série
de pompes (débit nominal). Le
SubDrive15 règlera la vitesse
de la pompe pour produire le
rendement de la courbe de
1,5 hp (1,1 kW). Un EXEMPLE de
cela est illustré dans le graphique
à droite. Veuillez consulter la
courbe de pompe du fabricant de
la pompe pour votre application
particulière.
Le SubDrive15 peut également être réglé pour actionner une pompe de 1,0 hp (0,75 kW) ou de
1,5 hp (1,1 kW) si désiré; mais les pompes plus puissantes suivront tout de même la courbe de
1,5 hp (1,1 kW) et ne peuvent être utilisées qu’avec un moteur de 1,5 hp (1,1 kW). Pour utiliser
une taille différente de pompe, un commutateur DIP doit être réglé pour sélectionner la bonne
valeur de pompe. Sinon, le SubDrive15 pourrait déclencher des défaillances erronées.
Consultez la section Conguration de base de ce manuel pour de l’information sur le
commutateur DIP et ses réglages.
s AVERTISSEMENT
!
Des décharges électriques graves ou mortelles peuvent résulter d’un contact avec des
composants électriques internes.
NE tentez JAMAIS de modier les réglages du commutateur DIP avant que l’alimentation
électrique n’ait été coupée et que cinq minutes se soient écoulées pour permettre aux tensions
internes de se dissiper! L’alimentation électrique doit être coupée pour que le réglage du
commutateur DIP soit appliqué.
EXEMPLE 1
Rendement typique du SubDrive15

22
SubDrive/MonoDrive
SubDrive20
Le SubDrive20 peut être utilisé avec des pompes de 1,0 hp (0,75 kW) installées sur des
moteurs triphasés Franklin Electric de 2,0 hp (1,5 kW). En général, le SubDrive20 améliorera
le rendement d’une pompe de 1,0 hp (0,75 kW) pour la rendre équivalente (ou mieux) à une
pompe traditionnelle de 2,0 hp (1,5 kW) avec le même débit nominal (série de pompes).
Pour choisir la pompe de
1,0 hp (0,75 kW) appropriée,
choisissez d’abord une courbe
de 2,0 hp (1,5 kW) qui satisfait
les exigences de charge
hydraulique et de débit de
l’application. Utilisez la pompe
de 1,0 hp (0,75 kW) dans la
même série de pompes (débit
nominal). Le SubDrive20 règlera
la vitesse de la pompe pour
produire le rendement de la
courbe de 2,0 hp (1,5 kW).
Un EXEMPLE de cela est illustré
dans le graphique à droite.
Veuillez consulter la courbe
de pompe du fabricant de la
pompe pour votre application
particulière.
Le SubDrive20 peut également être réglé pour actionner une pompe de 1,5 hp (1,1 kW) ou de
2,0 hp (1,5 kW) si désiré; mais les pompes plus puissantes suivront tout de même la courbe de
2,0 hp (1,5 kW) et ne peuvent être utilisées qu’avec un moteur de 2,0 hp (1,5 kW). Pour utiliser
une taille différente de pompe, un commutateur DIP doit être réglé pour sélectionner la bonne
valeur de pompe. Sinon, le SubDrive20 pourrait déclencher des défaillances erronées.
Consultez la section Conguration de base de ce manuel pour de l’information sur le
commutateur DIP et ses réglages.
s AVERTISSEMENT
!
Des décharges électriques graves ou mortelles peuvent résulter d’un contact avec des
composants électriques internes.
NE tentez JAMAIS de modier les réglages du commutateur DIP avant que l’alimentation
électrique n’ait été coupée et que cinq minutes se soient écoulées pour permettre aux tensions
internes de se dissiper! L’alimentation électrique doit être coupée pour que le réglage du
commutateur DIP soit appliqué.
EXEMPLE 2
Rendement typique du SubDrive20

SubDrive/MonoDrive
23
SubDrive30
Le SubDrive30 peut être utilisé avec des pompes de 1,5 hp (1,1 kW) installées sur des
moteurs triphasés Franklin Electric de 3,0 hp (2,2 kW). En général, le SubDrive30 améliorera le
rendement d’une pompe de 1,5 hp (1,1 kW) pour la rendre équivalente (ou mieux) à une pompe
traditionnelle de 3,0 hp (2,2 kW) avec le même débit nominal (série de pompes).
Pour choisir la pompe de
1,5 hp (1,1 kW) appropriée,
choisissez d’abord une
courbe de 3,0 hp (2,2 kW)
qui satisfait les exigences
de charge hydraulique et
de débit de l’application.
Utilisez la pompe de 1,5 hp
(1,1 kW) dans la même
série de pompes (débit
nominal). Le SubDrive30
règlera la vitesse de la
pompe pour produire le
rendement de la courbe
de 3,0 hp (2,2 kW). Un
EXEMPLE de cela est
illustré dans le graphique
à droite. Veuillez consulter
la courbe de pompe du
fabricant de la pompe
pour votre application
particulière.
Le SubDrive30 peut également être réglé pour actionner une pompe de 2,0 hp (1,5 kW) ou de
3,0 hp (2,2 kW) si désiré; mais les pompes plus puissantes suivront tout de même la courbe de
3,0 hp (2,2 kW) et ne peuvent être utilisées qu’avec un moteur de 3,0 hp (2,2 kW). Pour utiliser
une taille différente de pompe, un commutateur DIP doit être réglé pour sélectionner la bonne
valeur de pompe. Sinon, le SubDrive30 pourrait déclencher des défaillances erronées.
Consultez la section Conguration de base de ce manuel pour de l’information sur le
commutateur DIP et ses réglages.
s AVERTISSEMENT
!
Des décharges électriques graves ou mortelles peuvent résulter d’un contact avec des
composants électriques internes.
NE tentez JAMAIS de modier les réglages du commutateur DIP avant que l’alimentation
électrique n’ait été coupée et que cinq minutes se soient écoulées pour permettre aux tensions
internes de se dissiper! L’alimentation électrique doit être coupée pour que le réglage du
commutateur DIP soit appliqué.
EXEMPLE 3
Rendement typique du SubDrive30
24
SubDrive/MonoDrive
MonoDrive
Le MonoDrive est conçu pour convertir un système de pompe traditionnel de 1/2 hp (0,37 kW), de
3/4 hp (0,55 kW) ou de 1,0 hp (0,75 kW) en un système à pression constante et à vitesse variable,
en remplaçant simplement le boîtier de commande à 3 ls et l’interrupteur à pression. La puissance
de sortie maximale de pompe avec le MonoDrive est similaire au rendement atteint au moyen d’un
boîtier de commande traditionnel. Par conséquent, les critères de sélection de pompe sont les
mêmes que si un boîtier de commande était utilisé. Veuillez consulter la documentation du fabricant
de la pompe pour connaître la procédure détaillée de sélection de pompe.
Si une pompe et un moteur décrits ci-dessus sont déjà installés dans le système et que les
composants du système de puits sont en bon état de fonctionnement, aucune autre mise
à niveau du système n’est requise. Cependant, si la pompe et le moteur en place n’ont pas
été choisis avec soin, ou si les composants du système de puits ne sont pas en bon état de
fonctionnement, le MonoDrive ne peut pas être utilisé pour corriger le problème ou prolonger la
durée de vie des composants utilisés.
Si la conguration ne correspond pas aux valeurs nominales de la pompe et du moteur, des
défaillances erronées pourraient se produire. Consultez la section Conguration de base de ce
manuel pour de l’information sur le commutateur DIP et ses réglages.
MonoDriveXT
Le MonoDriveXT est conçu pour convertir un système de pompe traditionnel de 1,0 hp
(0,75 kW), de 1,5 hp (1,1 kW) ou de 2,0 hp (1,5 kW) en un système à pression constante et à
vitesse variable, en remplaçant simplement le boîtier de commande à 3 ls et l’interrupteur
à pression. La puissance de sortie maximale de pompe avec le MonoDriveXT est similaire
au rendement atteint au moyen d’un boîtier de commande traditionnel. Par conséquent, les
critères de sélection de pompe sont les mêmes que si un boîtier de commande était utilisé.
Veuillez consulter la documentation du fabricant de la pompe pour connaître la procédure
détaillée de sélection de pompe.
Si une pompe et un moteur décrits ci-dessus sont déjà installés dans le système et que les
composants du système de puits sont en bon état de fonctionnement, aucune autre mise
à niveau du système n’est requise. Cependant, si la pompe et le moteur en place n’ont pas
été choisis avec soin, ou si les composants du système de puits ne sont pas en bon état
de fonctionnement, le MonoDriveXT ne peut pas être utilisé pour corriger le problème ou
prolonger la durée de vie des composants utilisés.
Si la conguration ne correspond pas aux valeurs nominales de la pompe et du moteur, des
défaillances erronées pourraient se produire. Consultez la section Conguration de base de ce
manuel pour de l’information sur le commutateur DIP et ses réglages.

SubDrive/MonoDrive
25
Procédure d’installation
Fixation de l’entraînement
L’unité SubDrive/MonoDrive doit être xée sur une surface ou une plaque arrière au moins aussi
grande que les dimensions extérieures du contrôleur, an de préserver la norme NEMA 3R. Le
contrôleur doit être xé à au moins 45,7 cm (18 po) du sol.
Le contrôleur est xé au moyen de l’onglet de suspension sur la partie supérieure du
boîtier et de deux (2) trous de xation supplémentaires sur la partie arrière du contrôleur.
Les trois (3) emplacements de trou de vis doivent tous être utilisés an de s’assurer que le
contrôleur est xé de manière sécuritaire à la plaque arrière ou au mur.
« B »
« A »
157,4
[6,19]
« C »
« D »
133,9
[5,27]
250,5
[9,86]

26
SubDrive/MonoDrive
MODÈLE « A » « B » « C » « D »
SubDrive15, MonoDrive 464,2
[18,28]
355,2
[13,98]
454,7
[17,90]
427,4
[16,83]
SubDrive20, SubDrive30, MonoDriveXT 539,4
[21,24]
430,4
[16,94]
529,9
[20,86]
502,6
[19,79]
11
[0,43]
53,2
[2,09]
53,9
[2,12]
140
[5,51]
2X 7,7
[0,31]

SubDrive/MonoDrive
27
1. Vériez que l’alimentation a été coupée au niveau du disjoncteur principal.
2. Vériez que le circuit de dérivation séparé du SubDrive/MonoDrive est muni d’un disjoncteur
de taille appropriée. (Consultez le tableau 1, p. 18 pour la taille minimale de disjoncteur.)
3. Utilisez des connecteurs de conduit ou de réduction de tension appropriés. Vous trouverez
ci-dessous les tailles de trou et des débouchures de conduit.
4. Retirez le couvercle du SubDrive/MonoDrive.
5. Faites passer les ls de connexion du moteur par l’ouverture sur le côté inférieur droit de
l’unité et connectez-les aux emplacements du bloc de bornes marqués en (vert, l de mise
à la terre), rouge, jaune et noir.
s AVERTISSEMENT
!
Le fait de ne pas brancher le moteur, le SubDrive/MonoDrive, la plomberie en métal et tous les
autres métaux à proximité du moteur ou du câble à la borne de mise à la terre de l’alimentation
électrique au moyen d’un l dont le diamètre n’est pas inférieur à celui des ls du câble du moteur
peut provoquer une décharge électrique grave ou mortelle. Pour réduire le risque de décharge
électrique, débranchez l’alimentation avant de travailler sur le réseau d’eau ou à proximité.
N’utilisez pas le moteur dans les zones de baignade.
28,6 TROU
[1,13]
34,9 DÉBOUCHURE
[1,37]
[0,5]
TROU12,7
[1,13]
28,6 DÉBOUCHURE
]0,88[
TROU22,2
22,2 DÉBOUCHURE
[0,88]
47,7
[1,88]
97,7
[3,85]
110,7
[4,36] 97,7
[3,85]
33,6
[1,32]
40,3
[1,59]
198,3
[7,81]
82,3
[3,24]
Câblage de l’entraînement

28
SubDrive/MonoDrive
6. Faites passer les ls de connexion de l’alimentation
230 V CA par l’ouverture plus grande sur le côté
inférieur gauche du contrôleur SubDrive/MonoDrive
et connectez-les aux bornes L1, L2 et .
7. Pour les ls de connexion du capteur de pression,
utilisez l’ouverture plus petite au bas de l’unité
SubDrive/MonoDrive, à droite des ls de connexion
de l’alimentation d’entrée. Connectez les ls
de connexion rouge et noir aux bornes du bloc
de bornes sur le Panneau d’entrée de pression
appelées « Capteur de pression » (interchangeable),
au moyen du petit tournevis fourni. Serrez le
raccord comme indiqué sur l’illustration à droite.
Remarque : Le Panneau d’entrée de pression
comporte deux (2) bornes appelées « AUX IN » qui
peuvent être utilisées pour fournir une commande
auxiliaire de l’entraînement. Cette connexion est en
série avec le signal d’entrée du capteur de pression et
n’est pas alimentée. L’appareil connecté à cette borne
doit être une connexion fermée ou court-circuitée,
lorsque l’on veut que l’entraînement pompe de l’eau
(si la pression du système est inférieure à la pression
de réglage du capteur de pression). Si « AUX IN »
est un circuit ouvert, l’entraînement restera en mode
veille, peu importe la pression du système.
Pour utiliser les connexions « AUX IN », on doit
retirer l’onglet détachable du coin inférieur droit du
Panneau d’entrée de pression. Si l’onglet détachable
n’est pas retiré, les connexions « AUX IN » seront
toujours court-circuitées. Si l’onglet détachable est retiré
et que les bornes « AUX IN » ne sont pas utilisées pour
un appareil auxiliaire, les connexions « AUX IN » doivent
être court-circuitées de manière manuelle.
Consultez l’illustration à droite pour connaître
l’emplacement de cet onglet. Le Panneau d’entrée
de pression doit être retiré de l’entraînement avant de
briser l’onglet détachable an d’éviter d’endommager
l’entraînement.
s PRUDENCE
!
Pour les applications de conversion (c.-à-d. MonoDrive), assurez-vous de vérier l’intégrité des
ls de connexion de l’alimentation et du moteur.
Cela implique de mesurer la résistance de l’isolation au moyen d’un mégohmmètre approprié.
* Consultez le Manuel AIM pour connaître les spécications.
CONTACT:
5A 250VAC
5A30VDC
COIL:12VDC
G68-2114P
-US
12VDC
MADE IN
CHINA
OMRON
COM NC NO
FAN
YELRED BLK
PRESSURE
SWITCH
Tighten terminals to 15 in-lbs.
L2L1
RUN
RELAY
Suitable for use on a circuit capable of
delivering not more than 5000 rms
symmetrical amperes, 250 V maximum.
Use 75 ºC CU wire rate 300 V min.
Installation/Operation manual may
be ordered by contacting your local
Franklin Electric representative.
Tighten terminals to 15 in-lbs.
Use 75 ºC CU wire rated 300 V min
CONTACT:
5A 250VAC
5A30VDC
COIL:12VDC
G68-2114P
-US
12VDC
MADE IN
CHINA
OMRON
SubDrive/MonoDrive
29
Remarque : Une section de 3 m (10 pi) de câble de capteur de pression est fournie avec le
contrôleur, mais il est possible d’utiliser du l de calibre 22 AWG similaire pour des distances
allant jusqu’à 30 m (100 pi) du capteur de pression. Une section de 30 m (100 pi) de câble de
capteur de pression est offerte par votre distributeur Franklin Electric local. Un câble à faible
capacité doit être utilisé si le capteur de pression est connecté avec un câble qui ne provient
pas de Franklin Electric. Des longueurs de câble supérieures à 30 m (100 pi) ne doivent pas
être utilisées, car elles peuvent provoquer un fonctionnement incorrect de l’entraînement.
(Consultez la section Accessoires à la page 35 pour plus de détails.)
8. Vériez que l’unité SubDrive/MonoDrive est congurée de manière appropriée pour la
puissance nominale en hp de la pompe et du moteur utilisés. (Consultez la section Taille de
la pompe à la page 24 pour de l’information sur la conguration de l’entraînement.)
9. Replacez le couvercle. Serrez la vis à un couple de 10 po-lb (1,1 Nm).
10. Connectez l’autre extrémité du câble de capteur de pression à ce dernier au moyen des
deux bornes embrochables. Les connexions sont interchangeables.
11. Réglez la précharge du réservoir pressurisé à 70 % du réglage de pression d’eau désirée.
Pour vérier la précharge du réservoir, mettez le système d’eau hors pression en ouvrant
un robinet alors que l’entraînement est éteint. Consultez le tableau 4 à la page 20.
Mesurez la précharge du réservoir à sa valve de gonage au moyen d’un manomètre et
effectuez les réglages nécessaires.
12. Le capteur de pression communique la pression du système au contrôleur SubDrive/
MonoDrive. Le capteur est préréglé à l’usine à une pression de 50 psi (3,4 bar), mais peut
être réglé par l’installateur grâce à la procédure suivante :
a. Retirez le capuchon d’extrémité en caoutchouc.
b. Au moyen d’une clé Allen de 7/32 po (fournie), tournez la vis de réglage dans le sens
horaire pour augmenter la pression ou dans le sens antihoraire pour réduire la pression.
La plage de réglage est entre 25 et 80 psi (1,7 et 5,5 bar). Remarque : 1/4 tour =
environ 3 psi (0,2 bar).
c. Replacez le capuchon d’extrémité en caoutchouc.
d. Couvrez les bornes du capteur de pression avec la gaine de caoutchouc fournie
(gure X). Ne placez pas la gaine à la lumière directe du soleil.

30
SubDrive/MonoDrive
REMARQUE : Assurez-vous que le système est mis à la terre de manière appropriée jusqu’au
panneau d’entrée de service. Une mise à la terre incorrecte peut provoquer la perte de la
protection contre la surtension et du ltrage des interférences.
Conguration de l’entraînement
Conguration de base (commutateurs DIP)
Pour la conguration de base, la position 1 du DIP SW1 (interrupteur FE Connect) doit être en
position « OFF » (basse) pour que les réglages du commutateur DIP et du potentiomètre de
sous-charge soient reconnus.
Sélection de l’entraînement
Les unités SubDrive ont la capacité de fonctionner en mode MonoDrive au besoin (le
SubDrive15 peut être conguré en tant que MonoDrive alors que les unités SubDrive20 et
SubDrive30 peuvent être congurées en tant que MonoDriveXT). Si vous souhaitez utiliser un
moteur monophasé avec une unité SubDrive, assurez-vous que la position 2 du DIP SW1 est
en position « ON » (haute). Cela est indiqué par « MD » imprimé au-dessus de la position 2 du
DIP SW1, sur le protecteur noir. Si vous utilisez un SubDrive avec un moteur triphasé, assurez-
vous que la position 2 du DIP SW1 est en position « OFF » (basse), ce qui est indiqué par
« SD » imprimé sous la position 2 du DIP SW1, sur le protecteur noir (cela est le réglage par
défaut pour les unités SubDrive).
Remarque : Lorsque vous utilisez un SubDrive en tant que MonoDrive, les spécications de
pompe et de moteur du MonoDrive à la page 5 s’appliquent.
s AVERTISSEMENT
!
Des décharges électriques graves ou mortelles peuvent résulter d’un contact avec des
composants électriques internes.
NE tentez JAMAIS de modier les réglages du commutateur DIP avant que l’alimentation
électrique n’ait été coupée et que cinq minutes se soient écoulées pour permettre aux tensions
internes de se dissiper! L’alimentation électrique doit être coupée pour que le réglage du
commutateur DIP soit appliqué.
s ATTENTION
!
Pendant l’augmentation de la pression, ne dépassez pas la butée mécanique sur le capteur de
pression ou 80 psi (5,5 bar). Le capteur de pression pourrait être endommagé.

SubDrive/MonoDrive
31
Sélectionnez un (1) interrupteur DIP précis dans SW2 qui correspond à la puissance en hp du
moteur utilisé, ainsi qu’un (1) interrupteur DIP précis dans SW3 qui correspond à la puissance en
hp de la pompe utilisée. Les valeurs de puissance en hp correspondantes sont imprimées au-
dessus des schémas SW2 et SW3, sur le protecteur noir. Si vous ne sélectionnez aucun ou plus
d’un interrupteur soit dans SW2, soit dans SW3, une défaillance d’interrupteur DIP invalide sera
afchée par F24 sur l’écran.
Sensibilité de sous-charge (au besoin)
La sensibilité de sous-charge DOIT être réglée seulement lorsque l’unité SubDrive/MonoDrive est
ÉTEINTE. Le nouveau réglage n’est appliqué que lorsque l’entraînement est démarré.
Le contrôleur SubDrive/MonoDrive est conguré à l’usine pour assurer la détection des défaillances
de sous-charge dans un large éventail d’applications de pompage. Dans de rares situations (comme
certaines pompes dans des puits peu profonds), ce niveau de déclenchement peut provoquer des
défaillances injustiées. Si la pompe est installée dans un puits peu profond, activez le contrôleur
puis observez le comportement du système. Une fois que le contrôleur commence à réguler la
pression, vériez le fonctionnement à différents débits pour vous assurer que la sensibilité par défaut
ne provoque pas de déclenchements injustiés de sous-charge.
S’il devient nécessaire de réduire la sensibilité du niveau de déclenchement de sous-charge,
coupez l’alimentation et attendez cinq minutes pour que le contrôleur se décharge. Une fois que
les tensions internes se sont dissipées, repérez le potentiomètre de sous-charge dans le coin
supérieur droit du panneau d’interface utilisateur, comme illustré dans la gure ci-dessous.
Sélection de la pompe et du moteur
Le SubDrive/MonoDrive peut être conguré pour fonctionner en réglant seulement
deux (2) commutateurs DIP : un (1) pour la taille du moteur et l’autre (2) pour la taille de la
pompe. Les commutateurs DIP sont situés au haut du panneau d’interface utilisateur, comme
illustré dans la gure ci-dessous.
Remarque : Lorsque vous utilisez un SubDrive en tant que MonoDrive, les spécications de
pompe et de moteur du MonoDrive à la page 5 s’appliquent.
« Valeurs de hp »

32
SubDrive/MonoDrive
Sensibilité de sous-charge: réglage peu profond
Si la pompe est installée dans un puits extrêmement peu profond (p. ex., artésien) et que
le système continue de se déclencher, vous devez régler le potentiomètre (pot) de sous-
charge dans le sens horaire, à un réglage de sensibilité plus faible. Vériez le niveau de
déclenchement de sous-charge et répétez au besoin.
Sensibilité de sous-charge: réglage profond
Dans les situations où la pompe est placée à une grande profondeur, faites fonctionner
le système avec un refoulement ouvert pour pomper le contenu du puits et observez
soigneusement qu’une sous-charge est détectée de manière appropriée. Si le système ne se
déclenche pas comme il le devrait, le potentiomètre de sous-charge devra être réglé dans le
sens horaire, à un réglage de sensibilité plus élevé.
Sélection de débit constant
Le contrôleur SubDrive/MonoDrive est conguré à l’usine pour assurer une réponse rapide
pour le maintien d’une pression constante. Dans de rares situations (comme avec un
embranchement de conduit d’eau avant le réservoir pressurisé), le contrôleur peut devoir être
réglé pour offrir un meilleur contrôle.
Si le contrôleur est utilisé sur un système qui comporte un embranchement de conduit d’eau
avant le réservoir pressurisé et près de la tête de puits, ou qui est caractérisé par des variations
audibles de vitesse du PMA dans les tuyaux, un réglage du temps de réponse du contrôle de
pression peut s’avérer nécessaire. Après avoir activé cette caractéristique, l’installateur doit
vérier les changements de débit et de pression, à la recherche de dépassements possibles.
Un réservoir pressurisé plus grand ou une plus grande marge entre la pression de régulation
et la pression de soupape de surpression peuvent être requis, car les caractéristiques de débit
constant réduisent le temps de réaction du contrôleur à des changements brusques de débit.
S’il est nécessaire de régler le contrôle de pression, coupez l’alimentation et attendez que
le contrôleur se décharge. Attendez 5 minutes pour permettre aux tensions internes de se
dissiper, puis repérez le commutateur DIP appelé « SW1 ». Déplacez la position 4 du DIP SW1
en position « ON » (haute).
Potentiomètre
de sensibilité de
sous-charge

SubDrive/MonoDrive
33
Conguration avancée (application mobile
FEConnect / Wi-Fi)
Certaines caractéristiques avancées peuvent être modiées lorsque vous êtes connecté(e)
au SubDrive/MonoDrive au moyen du Wi-Fi et de l’application mobile FE Connect. Suivez les
instructions ci-dessous pour vous connecter à l’entraînement et accéder à ces caractéristiques
et réglages avancés.
Se connecter au Wi-Fi
1. La radio Wi-Fi de l’entraînement n’accepte les connexions que dans les
quinze (15) minutes qui suivent un démarrage. Si l’entraînement est allumé depuis plus
de quinze (15) minutes, redémarrez l’unité SubDrive/MonoDrive.
2. Après quelques secondes d’initialisation après le démarrage, le voyant FE Connect
s’allumera sans clignoter pour indiquer qu’une connexion est disponible. Le voyant
FE Connect est situé tout juste sous la fenêtre transparente de l’écran.
3. Ouvrez les réglages de connexion Wi-Fi sur l’appareil que vous désirez utiliser pour vous
connecter à l’entraînement. Cela est similaire à la méthode utilisée pour se connecter à
un point d’accès Wi-Fi normal. Dans la liste des connexions Wi-Fi disponibles, repérez
le point d’accès « FECNCT_XXXXX », où « XXXXX » est le sufxe du numéro de série de
l’entraînement auquel vous désirez vous connecter.
4. Connectez-vous au point d’accès Wi-Fi. Le voyant FE Connect sur l’entraînement
clignote pour indiquer qu’une connexion est établie. Un seul (1) appareil à la fois peut se
connecter à un entraînement.
Remarque: La connexion Wi-Fi demeure active pendant une période indénie, tant que
l’appareil mobile n’est pas déconnecté du Wi-Fi de l’entraînement. Si la connexion est
rompue, le Wi-Fi de l’entraînement demeure disponible pour une nouvelle connexion
pendant une (1) heure suivant la déconnexion. Si vous désirez vous connecter à
nouveau au Wi-Fi de l’entraînement après que l’heure soit écoulée, l’entraînement doit
être redémarré.
s AVERTISSEMENT
!
Des décharges électriques graves ou mortelles peuvent résulter d’un contact avec des
composants électriques internes.
NE tentez JAMAIS de modier les réglages du commutateur DIP avant que l’alimentation
électrique n’ait été coupée et que cinq minutes se soient écoulées pour permettre aux tensions
internes de se dissiper! L’alimentation électrique doit être coupée pour que le réglage du
commutateur DIP soit appliqué.
La lumière FE Connect
34
SubDrive/MonoDrive
Accéder à l’entraînement
Après avoir établi une connexion à l’entraînement, lancez l’application mobile FE Connect.
L’application mobile FE Connect peut être téléchargée du Apple App Store ou de Google Play,
selon l’appareil utilisé.
Conguration
L’écran de conguration permet la conguration de caractéristiques additionnelles de
l’entraînement, notamment :
• Sortie d’entraînement*
• Taille du moteur*
• Taille de la pompe*
• Sensibilité de sous-charge*
• Temps de décalage de sous-charge
• Fréquence minimale
• Fréquence maximale
• Mode de choc
• Mode pour réservoir de grande taille
• Choc agressif
• Détection de tuyau brisé
• Débit constant*
• Unités (hp ou kW)
* An de changer et d’utiliser les réglages de cette page pour la sortie d’entraînement, la
taille du moteur, la taille de la pompe, la sensibilité de sous-charge et le débit constant, le
commutateur DIP de FE Connect (SW1, position 1) sur l’entraînement doit être à « ON ». Sinon,
l’entraînement utilisera les réglages par défaut de taille de moteur, de taille de pompe et de
sensibilité de sous-charge dénis au moyen des commutateurs DIP et du bouton rotatif de
sensibilité de sous-charge sur l’entraînement lui-même.
Surveillance
Cet écran permet la surveillance en temps réel du système, y compris :
• État du système
• Tension d’entrée
• Tension de sortie
• Intensité de sortie
• Régime du moteur
• Informations sur le système (modèle d’entraînement, version matérielle, version
logicielle)
Journaux
Cet écran permet de consulter et d’envoyer par courriel les journaux d’historique de défaillances
et de changements de conguration. Cette page afche également le temps total de
fonctionnement de l’entraînement et du moteur.

SubDrive/MonoDrive
35
Accessoire Détails Utilisé avec Numéro de
pièce
Trousse de ltre à air Empêche les insectes de pénétrer et d’endommager les
composants internes de l’entraînement Tous les modèles 226 550 901
Alternateur duplex
Permet à un système d’eau d’alterner entre deux pompes
en parallèle commandées par des unités SubDrive
séparées
Tous les modèles 585 001 2000
Filtre (entrée) Filtre utilisé sur l’entrée de l’entraînement, an de
contribuer à réduire les interférences Tous les modèles 225 198 901
Filtre (sortie) Filtre utilisé sur la sortie de l’entraînement, an de
contribuer à réduire les interférences Tous les modèles (sauf SD300) 225 300 901
Filtre (condensateurs de surtension) Condensateur utilisé sur le panneau de service, an de
contribuer à éliminer les interférences d’alimentation SD15, SD20, SD30, MD, MDXT 225 199 901
Parafoudre Monophasé (alimentation d’entrée) Monophasé (alimentation d’entrée) 150 814 902
Trousse de remplacement de
ventilateur NEMA 3R Ventilateur de remplacement SD15 et MD 226 545 901
Trousse de remplacement de
ventilateur NEMA 3R Ventilateur de remplacement SD20, SD30, MDXT 226 545 902
Capteur de pression
(Haute : 75-150 psi, homologué
NSF 61)
Règle la pression dans le système d’eau de 75 à 150 psi
(câble à deux ls de connexion) Tous les modèles 225 970 901
Capteur de pression
(Remplacement standard :
25-80 psi, homologué NSF 61)
Règle la pression dans le système d’eau de 25 à 80 psi
(câble à deux ls de connexion) Tous les modèles 223 995 901
Trousse de câble de capteur
(intérieur)
30 m (100 pi) de câble 22 AWG (câble à 2 ls de
connexion) SD15, SD20, SD30, MD et MDXT 223 995 902
Câble d’enfouissement direct du
capteur
Conçu pour être installé dans une tranchée souterraine
sans utiliser de conduit pour le protéger (câble à 4 ls de
connexion)
Tous les modèles; 3 m (10 pi)
Tous les modèles; 9 m (30 pi)
Tous les modèles; 30,5 m (100 pi)
225 800 901
225 800 902
225 800 903
Trousse de rabattement de réservoir Permet d’utiliser l’eau stockée dans le réservoir pendant
les périodes de demande à faible débit Tous les modèles 225 770 901
Panneau de remplacement d’entrée
de capteur de pression
Panneau de remplacement pour les entraînements qui ont
subi une surtension de l’entrée du capteur de pression Tous les modèles 226 540 901
Accessoires

CODES DE DÉFAILLANCE DE DIAGNOSTIC
Coupez l’alimentation, déconnectez les fils de connexion au moteur et allumez le SubDrive:
-Si le SubDrive ne donne pas une défaillance de «phase ouverte» (F5), il y a un problème avec le SubDrive.
-Connectez le SubDrive à un moteur sec. Si le moteur effectue le test CC et retourne une défaillance de «sous-charge» (F1), le SubDrive fonctionne correctement.
DÉPANNAGE
GUIDE DE RÉFÉRENCE RAPIDE
NOMBRE DE
CLIGNOTEMENTS DÉFAILLANCE CAUSE POSSIBLE MESURE CORRECTIVE
F1 SOUS-CHARGE DU
MOTEUR
-Puits excessivement pompé
-Arbre ou raccord brisés
-Tamis obstrué, pompe usée
-Pompe bloquée par de l’air ou du gaz
-SubDrive mal configuré pour l’extrémité de la
pompe
-Réglage incorrect de sensibilité de sous-charge
-Fréquence près du maximum alors que la charge est inférieure à la sensibilité de sous-charge configurée (potentiomètre
ou Wi-Fi)
-Système pompe jusqu’à l’aspiration de pompe (manque d’eau)
-Pompe à faible charge et statique élevée: réinitialisez le potentiomètre à une sensibilité plus faible s’il ne manque pas d’eau
-Vérifiez la rotation de la pompe (SubDrive seulement), reconnectez pour une rotation appropriée au besoin
-Pompe bloquée par de l’air ou du gaz: si possible, positionnez plus profondément dans le puits pour réduire le problème
-Vérifiez que les commutateurs DIP sont réglés de manière appropriée
-Vérifiez le réglage de sensibilité de sous-charge (réglage du potentiomètre ou par Wi-Fi, selon ce qui s’applique)
F2 SOUS-TENSION
-Faible tension de ligne
-Fils de connexion d’entrée mal connectés
-Connexion lâche au disjoncteur ou au panneau
-Faible tension de ligne, inférieure à 150VCA (plage de fonctionnement normal: 190 à 260VCA)
-Vérifiez les connexions d’alimentation entrante et corrigez ou serrez le cas échéant
-Corrigez la tension entrante: vérifiez le disjoncteur ou les fusibles, communiquez avec le fournisseur d’électricité
F3 INTENSITÉ
EXCESSIVE / POMPE
VERROUILLÉE
-Mauvais alignement du moteur ou de la pompe
-Pompe ou moteur traînants
-Pompe ou moteur verrouillés
-Présence d’abrasifs dans la pompe
-Longueur excessive de câble du moteur
- Intensité au-dessus de la LFS à 30Hz
- Retirez et réparez ou remplacez, au besoin
-Réduisez la longueur de câble du moteur Respectez le tableau de longueur maximale de câble de moteur
F4
(MonoDrive et
MonoDriveXT
seulement)
CÂBLAGE INCORRECT - MonoDrive seulement
- Mauvaises valeurs de résistances sur les
éléments principaux et de démarrage
- Mauvaise résistance pendant le test CC au démarrage
- Vérifiez le câblage, la taille du moteur et le réglage du commutateur DIP; réglez ou réparez au besoin
F5 PHASE OUVERTE
- Connexion lâche
- Moteur ou câble de dérivation défectueux
- Mauvais moteur
- Lecture ouverte pendant le test CC au démarrage
- Vérifiez la résistance du câble de dérivation et du moteur, serrez les connexions de sortie, réparez ou remplacez au
besoin, utilisez un moteur «sec» pour vérifier les fonctions de l’entraînement; si l’entraînement ne fonctionne pas et
affiche une défaillance de sous-charge, remplacez l’entraînement
F6 COURT-CIRCUIT
- Lorsqu’une défaillance est affichée
immédiatement après le démarrage, présence
d’un court-circuit en raison d’une connexion
lâche ou d’un câble, d’une épissure ou d’un
moteur défectueux
- Intensité dépasse 25A lors du test CC au démarrage ou dépasse l’intensité de facteur de service pendant le
fonctionnement
- Câblage de sortie incorrect, court-circuit phase à phase, court-circuit phase à mise à la terre dans le câblage ou le
moteur
- Si une défaillance se présente après la réinitialisation et le retrait des fils de connexion du moteur, remplacez
l’entraînement
F7 ENTRAÎNEMENT
SURCHAUFFÉ
- Température ambiante élevée
- Lumière directe du soleil
- Obstruction du débit d’air
- Le dissipateur thermique de l’entraînement a dépassé la température maximale nominale; doit redescendre sous 90°C
(194°F) pour redémarrer
- Ventilateur bloqué ou inutilisable, température ambiante au-dessus de 50°C (122°F), lumière directe du soleil, débit
d’air bloqué
- Remplacez le ventilateur ou déplacez l’entraînement, au besoin
-Retirez les débris de l'entrée/sortie de ventilateur
-Retirez et nettoyez la trousse facultative de filtre d'air (si installée)
F9 DÉFAILLANCE
INTERNE DE LA PCB - Une défaillance interne à l’entraînement a été
détectée - Communiquez avec le personnel d’entretien FranklinElectric
-Un remplacement de l’unité pourrait être nécessaire. Communiquez avec votre fournisseur.
F12 SURTENSION -Tension élevée de ligne
-Tension interne trop élevée
-Tension de ligne élevée
-Vérifiez les connexions d’alimentation entrante et corrigez ou serrez le cas échéant
-Si la tension de ligne est stable et qu’une mesure est inférieure à 260VCA, mais que le problème persiste,
communiquez avec le personnel d’entretien FranklinElectric

NOMBRE DE
CLIGNOTEMENTS DÉFAILLANCE CAUSE POSSIBLE MESURE CORRECTIVE
F14 TUYAU ROMPU
-Un tuyau rompu ou une fuite importante sont
détectés dans le système
-L’entraînement fonctionne à pleine puissance
pendant 10minutes sans atteindre le point de
réglage de pression
-Une forte consommation d’eau, comme un
système de gicleurs, ne permet pas au système
d’atteindre le point de réglage de pression
-Vérifiez le système pour la présence d’une fuite importante ou d’un tuyau rompu
-Si le système comporte un système de gicleurs ou est utilisé pour remplir une piscine ou une citerne, désactivez la
détection de tuyau rompu
F15
(SD15/20/30
SEULEMENT)
DÉSÉQUILIBRE DE
PHASE
-Les courants de phase du moteur diffèrent de
20% ou plus.
-Le moteur est usé de manière interne
-La résistance du câble du moteur est inégale
-Réglage incorrect du type de moteur
(monophasé ou triphasé)
-Vérifiez la résistance du câble et des bobinages de moteur
-Vérifiez que le type de moteur correspond aux réglages de l’entraînement (monophasé ou triphasé)
F16 DÉFAUT À LA TERRE -Le câble de sortie du moteur est endommagé ou
exposé à l’eau
-Court-circuit de phase vers la mise à la terre
-Vérifiez la résistance de l’isolation du câble du moteur avec un mégohmmètre (alors qu’il n’est pas connecté à
l’entraînement). Remplacez le câble du moteur au besoin.
F17
DÉFAILLANCE
DU CAPTEUR DE
TEMPÉRATURE DE
L’ONDULEUR
-Le capteur de température interne est
défectueux -Communiquez avec le personnel d’entretien FranklinElectric
-Si le problème persiste, il peut être nécessaire de remplacer l’unité. Communiquez avec votre fournisseur.
F18
(SD20/30/MDXT
SEULEMENT)
DÉFAILLANCE
DU CAPTEUR DE
TEMPÉRATURE DU
PFC
-Le capteur de température interne est
défectueux -Communiquez avec le personnel d’entretien FranklinElectric
-Si le problème persiste, il peut être nécessaire de remplacer l’unité. Communiquez avec votre fournisseur.
F19 DÉFAILLANCE DE LA
COMMUNICATION
-La connexion du câble entre l’écran/la carte Wi-
Fi et la carte de commande principale est lâche
ou rompue
-Défaillance du circuit interne
-Vérifiez la connexion du câble entre l’écran/la carte Wi-Fi et la carte de commande principale.
-Si le problème persiste, il peut être nécessaire de remplacer l’unité. Communiquez avec votre fournisseur.
F22
DÉFAILLANCE
ATTENDUE DE
L’ÉCRAN / DE LA
CARTE WI-FI
-La connexion entre l’écran/la carte Wi-Fi et
la carte de commande principale n’a pas été
détectée au démarrage de l’entraînement
-Vérifiez la connexion du câble entre l’écran/la carte Wi-Fi et la carte de commande principale.
-Si le problème persiste, il peut être nécessaire de remplacer l’unité. Communiquez avec votre fournisseur.
F23 DÉFAILLANCE AU
DÉMARRAGE DE LA
CARTE PRINCIPALE
- Une défaillance interne à l’entraînement a été
détectée - Communiquez avec le personnel d’entretien FranklinElectric
-Un remplacement de l’unité pourrait être nécessaire. Communiquez avec votre fournisseur.
F24 RÉGLAGE INVALIDE
DU COMMUTATEUR
DIP
-Aucun commutateur DIP réglé ou plus
d’un(1)commutateur DIP réglé pour la taille du
moteur
-Aucun commutateur DIP réglé ou plus
d’un(1)commutateur DIP réglé pour la taille de
la pompe
-Combinaison invalide de commutateurs DIP
pour le type d’entraînement (mode SD ou MD),
la puissance en hp du moteur ou celle de la
pompe.
-Vérifiez les réglages du commutateur DIP
CODES DE DÉFAILLANCE DE DIAGNOSTIC
Coupez l’alimentation, déconnectez les fils de connexion au moteur et allumez le SubDrive:
-Si le SubDrive ne donne pas une défaillance de «phase ouverte» (F5), il y a un problème avec le SubDrive.
-Connectez le SubDrive à un moteur sec. Si le moteur effectue le test CC et retourne une défaillance de «sous-charge» (F1), le SubDrive fonctionne correctement.
DÉPANNAGE
GUIDE DE RÉFÉRENCE RAPIDE

DÉPANNAGE
GUIDE DE RÉFÉRENCE RAPIDE
DÉPANNAGE DU SUBDRIVE
CONDITION VOYANTS INDICATEURS CAUSE POSSIBLE MESURE CORRECTIVE
AUCUNE EAU
AUCUN - Aucune tension d’alimentation n’est présente
-Câble de carte de l’écran déconnecté ou lâche
-Vérifiez la connexion du câble entre la carte de commande principale et la carte de l’écran
-Si une tension appropriée est présente, remplacez l’entraînement
VERT
«---» À L’ÉCRAN - Circuit du capteur de pression
-Vérifiez que la pression d’eau est inférieure au point de réglage du système
-Si l’onglet détachable du Panneau d’entrée de pression est retiré, assurez-vous que l’appareil auxiliaire est
connecté et que le circuit est fermé
-Si l’onglet détachable du Panneau d’entrée de pression est retiré et qu’aucun appareil auxiliaire n’est utilisé,
établissez manuellement un court-circuit des connexions «AUXIN»
-Liez les fils ensemble au capteur de pression; si la pompe démarre, remplacez le capteur
-Si la pompe ne démarre pas, vérifiez la connexion du capteur au Panneau d’entrée de pression; si elle est
lâche, réparez-la
-Si la pompe ne démarre pas, liez la connexion du capteur au Panneau d’entrée de pression; si la pompe
démarre, remplacez le fil
-Si la pompe ne démarre pas alors que la connexion du Panneau d’entrée de pression du capteur est liée,
remplacez le Panneau d’entrée de pression
-Si la pompe ne démarre pas avec un nouveau Panneau d’entrée de pression, remplacez l’entraînement
ROUGE
CODE DE DÉFAILLANCE À L’ÉCRAN - Défaillance détectée - Consultez la description du code de défaillance et les mesures correctives
VERT
FRÉQUENCE DU MOTEUR À L’ÉCRAN
-L’entraînement et le moteur sont en fonction
-Connexion de câble ou interrupteur lâches
-Réglages incorrects de moteur ou de pompe
-Le moteur tourne peut-être à l’envers
-Eau engloutie à l’aspiration de pompe
-Vérifiez le réglage de fréquence maximale. Si ce réglage a été réduit sous la valeur maximale, augmentez-le
-Vérifiez les valeurs nominales du moteur / de la pompe et faites-les correspondre aux réglages de moteur/
pompe sur l’entraînement (commutateur DIP ou Wi-Fi)
-Vérifiez les connexions du moteur
-Maximum de fréquence, intensité faible, vérifiez la présence d’une soupape fermée ou d’un clapet anti-retour
coincé
-Maximum de fréquence, intensité élevée, vérifiez la présence d’un trou dans le tuyau
-Maximum de fréquence, intensité erratique, vérifiez le fonctionnement de la pompe, turbines trainantes
-Cela n’est pas un problème avec l’entraînement
-Vérifiez toutes les connexions
-Débranchez l’alimentation électrique et laissez le puits récupérer pendant un court moment, puis essayez à
nouveau
FLUCTUATIONS DE
PRESSION
(MAUVAISE RÉGULATION)
VERT
FRÉQUENCE DU MOTEUR À L’ÉCRAN
- Emplacement et réglage du capteur de pression
- Emplacement de la jauge de pression
- Précharge et taille du réservoir pressurisé
- Fuite dans le système
- Air aspiré dans la prise de pompe
(absence de submersion)
-Corrigez l’emplacement et la pression le cas échéant
-Le réservoir peut être trop petit pour le débit du système
-Cela n’est pas un problème avec l’entraînement
-Débranchez l’alimentation électrique et vérifiez la jauge de pression pour repérer une baisse de pression
-Placez plus profondément dans le puits ou le réservoir; installez un manchon de débit avec un joint étanche à
l’air autour de la colonne descendante et du câble
-Si la fluctuation ne se produit que sur les embranchements avant le capteur, activez la caractéristique de débit
constant
- Modifier la configuration de la taille du reservoir
AUCUN ARRÊT ALORS
QUE L’UNITÉ EST EN
FONCTION
VERT
FRÉQUENCE DU MOTEUR À L’ÉCRAN
- Emplacement et réglage du capteur de pression
- Pression de précharge du réservoir
- Dommage à la turbine
- Système qui fuit
- Taille inappropriée (la pompe ne parvient pas à
générer une charge hydraulique suffisante)
-Vérifiez la fréquence à de faibles débits; le réglage de pression peut être trop près de la charge hydraulique
maximale de la pompe
-Vérifiez la précharge à 70% si la taille du réservoir est supérieure au minimum, augmentez la précharge
(jusqu’à 85%)
-Vérifiez que le système peut générer et maintenir la pression
- Activer le dispositif d’augmentation de pression usuel et/ou agressif
- Augmenter la fréquence minimale
FONCTIONNE, MAIS SE
DÉCLENCHE CLIGNOTEMENT ROUGE - Vérifiez le code de défaillance et consultez la
mesure corrective - Consultez la description du code de défaillance et les mesures correctives sur le côté opposé

DÉPANNAGE
GUIDE DE RÉFÉRENCE RAPIDE
DÉPANNAGE DU SUBDRIVE
CONDITION VOYANTS INDICATEURS CAUSE POSSIBLE MESURE CORRECTIVE
FAIBLE PRESSION VERT
FRÉQUENCE DU MOTEUR À L’ÉCRAN
- Réglage du capteur de pression, rotation de la
pompe, sélection de la pompe
-Température élevée
-Réglez le capteur de pression, vérifiez la rotation de la pompe
-Vérifiez la fréquence au débit maximal, vérifiez la pression maximale
-Une haute température ambiante ou de l’entraînement peut faire en sorte que l’entraînement replie la puissance
et fonctionne avec un rendement réduit
PRESSION ÉLEVÉE VERT
FRÉQUENCE DU MOTEUR À L’ÉCRAN
- Réglage du capteur de pression
- Court-circuit du fil de capteur
-Réglez le capteur de pression
-Retirez le fil du capteur au Panneau d’entrée de pression; si l’entraînement cesse de fonctionner, le fil peut être
court-circuité
-Retirez le fil du capteur au Panneau d’entrée de pression; si l’entraînement continue de fonctionner, remplacez
le Panneau d’entrée de pression
-Retirez le fil du capteur au nouveau Panneau d’entrée de pression; si l’entraînement continue de fonctionner,
remplacez l’entraînement
-Vérifiez l’état du fil du capteur et réparez ou remplacez au besoin
BRUIT AUDIBLE VERT
FRÉQUENCE DU MOTEUR À L’ÉCRAN - Ventilateur, système hydraulique, plomberie
-Dans le cas d’un bruit excessif du ventilateur, remplacez ce dernier
-Si le bruit du ventilateur est normal, l’entraînement doit être repositionné à un endroit plus éloigné
-Si c’est le système hydraulique qui est en cause, essayez d’augmenter ou de réduire la profondeur de la pompe
-L’emplacement du réservoir pressurisé doit être à l’entrée du conduit d’eau vers la maison
AUCUN AFFICHAGE AUCUN - Câble de carte de l’écran déconnecté ou lâche -Vérifiez la connexion du câble entre la carte de commande principale et la carte de l’écran
IMPOSSIBLE DE SE
CONNECTER AU WI-FI DE
L’ENTRAÎNEMENT
Voyant FEConnect illuminé sans clignoter -Tentative de se connecter au mauvais entraînement
-Hors de portée Wi-Fi de l’entraînement
-Assurez-vous que le SSID (nom de point d’accès) Wi-Fi auquel vous vous connectez correspond à
l’entraînement auquel vous désirez vous connecter
-La portée Wi-Fi est de 30 m (100pi) en ligne droite, ou moins si des murs ou planchers se trouvent entre
l’entraînement et vous
-Le module Wi-Fi ne répond pas, redémarrez l’entraînement
-Redémarrez la radio Wi-Fi sur l’appareil mobile, puis actualisez la liste de connexions Wi-Fi
Voyant FEConnect éteint -Temporisation de Wi-Fi expirée -S’il s’est écoulé plus de quinze(15)minutes depuis le dernier redémarrage, redémarrez l’entraînement
-Si plus d’une(1)heure s’est écoulée depuis la dernière déconnexion du Wi-Fi, redémarrez l’entraînement
INTERFÉRENCES RFI-EMI VERT
FRÉQUENCE DU MOTEUR À L’ÉCRAN
-Mauvaise mise à la terre
-Acheminement des fils
-Respectez les recommandations en matière de mise à la terre et d’acheminement des fils
-Un filtre externe additionnel peut être requis. Consultez la section Accessoires pour de l’information sur les
commandes.
CONDITION VOYANTS INDICATEURS CAUSE POSSIBLE MESURE CORRECTIVE
AUCUNE EAU
AUCUN - Aucune tension d’alimentation n’est présente
-Câble de carte de l’écran déconnecté ou lâche
-Vérifiez la connexion du câble entre la carte de commande principale et la carte de l’écran
-Si une tension appropriée est présente, remplacez l’entraînement
VERT
«---» À L’ÉCRAN - Circuit du capteur de pression
-Vérifiez que la pression d’eau est inférieure au point de réglage du système
-Si l’onglet détachable du Panneau d’entrée de pression est retiré, assurez-vous que l’appareil auxiliaire est
connecté et que le circuit est fermé
-Si l’onglet détachable du Panneau d’entrée de pression est retiré et qu’aucun appareil auxiliaire n’est utilisé,
établissez manuellement un court-circuit des connexions «AUXIN»
-Liez les fils ensemble au capteur de pression; si la pompe démarre, remplacez le capteur
-Si la pompe ne démarre pas, vérifiez la connexion du capteur au Panneau d’entrée de pression; si elle est
lâche, réparez-la
-Si la pompe ne démarre pas, liez la connexion du capteur au Panneau d’entrée de pression; si la pompe
démarre, remplacez le fil
-Si la pompe ne démarre pas alors que la connexion du Panneau d’entrée de pression du capteur est liée,
remplacez le Panneau d’entrée de pression
-Si la pompe ne démarre pas avec un nouveau Panneau d’entrée de pression, remplacez l’entraînement
ROUGE
CODE DE DÉFAILLANCE À L’ÉCRAN - Défaillance détectée - Consultez la description du code de défaillance et les mesures correctives
VERT
FRÉQUENCE DU MOTEUR À L’ÉCRAN
-L’entraînement et le moteur sont en fonction
-Connexion de câble ou interrupteur lâches
-Réglages incorrects de moteur ou de pompe
-Le moteur tourne peut-être à l’envers
-Eau engloutie à l’aspiration de pompe
-Vérifiez le réglage de fréquence maximale. Si ce réglage a été réduit sous la valeur maximale, augmentez-le
-Vérifiez les valeurs nominales du moteur / de la pompe et faites-les correspondre aux réglages de moteur/
pompe sur l’entraînement (commutateur DIP ou Wi-Fi)
-Vérifiez les connexions du moteur
-Maximum de fréquence, intensité faible, vérifiez la présence d’une soupape fermée ou d’un clapet anti-retour
coincé
-Maximum de fréquence, intensité élevée, vérifiez la présence d’un trou dans le tuyau
-Maximum de fréquence, intensité erratique, vérifiez le fonctionnement de la pompe, turbines trainantes
-Cela n’est pas un problème avec l’entraînement
-Vérifiez toutes les connexions
-Débranchez l’alimentation électrique et laissez le puits récupérer pendant un court moment, puis essayez à
nouveau
FLUCTUATIONS DE
PRESSION
(MAUVAISE RÉGULATION)
VERT
FRÉQUENCE DU MOTEUR À L’ÉCRAN
- Emplacement et réglage du capteur de pression
- Emplacement de la jauge de pression
- Précharge et taille du réservoir pressurisé
- Fuite dans le système
- Air aspiré dans la prise de pompe
(absence de submersion)
-Corrigez l’emplacement et la pression le cas échéant
-Le réservoir peut être trop petit pour le débit du système
-Cela n’est pas un problème avec l’entraînement
-Débranchez l’alimentation électrique et vérifiez la jauge de pression pour repérer une baisse de pression
-Placez plus profondément dans le puits ou le réservoir; installez un manchon de débit avec un joint étanche à
l’air autour de la colonne descendante et du câble
-Si la fluctuation ne se produit que sur les embranchements avant le capteur, activez la caractéristique de débit
constant
- Modifier la configuration de la taille du reservoir
AUCUN ARRÊT ALORS
QUE L’UNITÉ EST EN
FONCTION
VERT
FRÉQUENCE DU MOTEUR À L’ÉCRAN
- Emplacement et réglage du capteur de pression
- Pression de précharge du réservoir
- Dommage à la turbine
- Système qui fuit
- Taille inappropriée (la pompe ne parvient pas à
générer une charge hydraulique suffisante)
-Vérifiez la fréquence à de faibles débits; le réglage de pression peut être trop près de la charge hydraulique
maximale de la pompe
-Vérifiez la précharge à 70% si la taille du réservoir est supérieure au minimum, augmentez la précharge
(jusqu’à 85%)
-Vérifiez que le système peut générer et maintenir la pression
- Activer le dispositif d’augmentation de pression usuel et/ou agressif
- Augmenter la fréquence minimale
FONCTIONNE, MAIS SE
DÉCLENCHE CLIGNOTEMENT ROUGE - Vérifiez le code de défaillance et consultez la
mesure corrective - Consultez la description du code de défaillance et les mesures correctives sur le côté opposé
GARANTIE LIMITÉE*
CETTE GARANTIE ÉNONCE LES SEULES OBLIGATIONS DE L’ENTREPRISE ET LES RECOURS EXCLUSIFS DE L’ACHETEUR EN CAS
DE PRODUIT DÉFECTUEUX.
Franklin Electric Company, Inc. et ses liales (ci-après « l’Entreprise ») garantit que les produits accompagnés de cette garantie sont exempts
de défauts quant aux matériaux ou à la main-d’œuvre par l’Entreprise.
L’Entreprise a le droit d’inspecter tout produit retourné sous garantie pour conrmer qu’il présente un défaut de matériau ou de main-
d’œuvre. Elle a le droit exclusif de choisir de réparer ou de remplacer le matériel, les pièces ou les composants défectueux.
L’acheteur doit retourner le produit à un point de distribution Franklin Electric autorisé pour examen. Si le retour est effectué au point d’achat,
la couverture de la garantie ne sera prise en considération que si le lieu de vente en question est un distributeur Franklin Electric autorisé au
moment de la réclamation. Sous réserve des conditions générales énoncées ci-dessous, l’Entreprise s’engage à réparer ou à remplacer toute
partie du produit retourné par l’acheteur qui s’avère défectueuse en raison des matériaux ou de la main-d’œuvre provenant de l’Entreprise.
L’Entreprise n’envisagera l’application de la garantie que dans les 12 mois suivant la date d’installation du produit ou dans les 24 mois suivant
sa fabrication, selon la première éventualité.
L’Entreprise ne pourra EN AUCUN CAS être tenue responsable du coût de la main-d’œuvre ou d’autres frais engagés par un client pour retirer
ou xer un produit, ou quelconque pièce ou composant qui le constitue.
L’Entreprise se réserve le droit de modier ou d’améliorer ses produits ou toute partie de ceux-ci sans être obligée de fournir une telle
modication ou amélioration aux produits déjà vendus.
LA PRÉSENTE GARANTIE NE S’APPLIQUE PAS AUX produits endommagés par un acte de la nature, y compris la foudre, l’usure normale,
les services de maintenance normale et les pièces utilisées avec de tels services, ou toute autre condition au-delà du contrôle de l’Entreprise.
LA PRÉSENTE GARANTIE SERA IMMÉDIATEMENT ANNULÉE si l’une des conditions suivantes est constatée :
1. Le produit est utilisé à des ns autres que celles pour lesquelles il a été conçu et fabriqué;
2. Le produit n’a pas été installé conformément aux codes et aux règlements applicables et aux bonnes pratiques commerciales;
3. Le produit n’a pas été installé par un entrepreneur certié par Franklin;
4. Le produit a été endommagé à la suite d’une négligence, d’un abus, d’un accident, d’une mauvaise application, de vandalisme, d’une
altération, d’une installation, d’un fonctionnement, d’une maintenance ou d’un entreposage inapproprié ou d’un dépassement des
maximums recommandés dans les instructions du produit.
NI LE VENDEUR, NI L’ENTREPRISE NE POURRONT ÊTRE TENUS RESPONSABLES DES BLESSURES, DES PERTES OU DES DOMMAGES
DIRECTS, ACCESSOIRES OU INDIRECTS (Y COMPRIS, SANS S’Y LIMITER, LES DOMMAGES INDIRECTS RELATIFS À UN MANQUE À
GAGNER, À UNE PERTE DE VENTES, À DES BLESSURES CORPORELLES, À DES DOMMAGES MATÉRIELS OU À TOUTE AUTRE PERTE
ACCESSOIRE OU INDIRECTE) DÉCOULANT DE L’UTILISATION DU PRODUIT OU DE L’INCAPACITÉ DE L’EMPLOYER, ET L’ACHETEUR
CONVIENT QU’AUCUN AUTRE RECOURS NE SERA POSSIBLE.
LA GARANTIE ET LE RECOURS DÉCRITS AUX PRÉSENTES SONT EXCLUSIFS ET ONT PRÉSÉANCE SUR TOUTE AUTRE GARANTIE OU
TOUT AUTRE RECOURS EXPLICITE OU IMPLICITE. LES AUTRES GARANTIES ET RECOURS SONT AINSI EXPRESSÉMENT EXCLUS,
Y COMPRIS, MAIS SANS S’Y LIMITER, TOUTE GARANTIE IMPLICITE DE QUALITÉ MARCHANDE OU DE CONFORMITÉ À UN USAGE
PARTICULIER. LA DURÉE DE LA GARANTIE OU DU RECOURS APPLICABLE À UN PRODUIT SE LIMITE AUX PÉRIODES DE GARANTIE
EXPLICITEMENT INDIQUÉES CI-DESSUS.
NON-RESPONSABILITÉ : Toute afrmation verbale à propos du produit effectuée par le vendeur, l’Entreprise, les représentants ou d’autres
parties ne constitue pas une garantie, ne doit pas être interprétée comme telle par l’acheteur et ne fait pas partie du contrat de vente. Les
seules obligations du vendeur et de l’Entreprise et les seuls recours de l’acheteur seront le remplacement ou la réparation par l’Entreprise du
produit, comme décrit ci-dessus. Avant l’utilisation, l’utilisateur devra déterminer l’adéquation du produit avec l’usage auquel il est destiné; et
l’utilisateur assume toutes les responsabilités et tous les risques liés à ce choix.
Certains États et pays n’autorisent pas l’exclusion ou la limitation de la durée d’une garantie implicite ou l’exclusion ou la limitation de
dommages accessoires ou indirects, de sorte que l’exclusion ou les limitations énoncées ci-dessus peuvent ne pas s’appliquer à vous. Cette
garantie vous accorde des droits juridiques précis, et vous pouvez également disposer d’autres droits, lesquels varient selon l’État et le pays.
Franklin Electric peut, à sa seule discrétion, mettre à jour la présente garantie limitée de temps à autre. Toute information contradictoire
concernant les procédures de garantie, que ce soit dans un manuel d’utilisation ou ailleurs, est remplacée par la présente par ce document.
Néanmoins, toutes les références à une période, ou à la durée d’une période de garantie, demeureront conformes à la garantie en vigueur au
moment de l’achat.
* Communiquez avec la division de l’exportation de Franklin Electric Co., Inc. pour connaître la garantie internationale.
REMARQUES:
REMARQUES:
REMARQUES:

Form. 226203101
Rév. 0
10/14
9255, CoverdaleRoad, FortWayne,
Indiana46809
Tél.: 260-824-2900 Téléc.: 260-824-2909
www.franklinwater.com

SubDrive15/20/30
MonoDrive, MonoDriveXT
NEMA 3R
Manual del propietario

s ADVERTENCIA
!
s ADVERTENCIA
!
s ADVERTENCIA
!
Puede ocurrir un choque eléctrico serio o fatal por no conectar el motor, el SubDrive/MonoDrive,
las tuberías de metal y todos los otros objetos de metal en las cercanías del motor o cable al terminal
de conexión a tierra de la fuente de alimentación usando un cable que no sea más pequeño que los
cables del motor. Para reducir el riesgo de descargas eléctricas, desconecte la alimentación eléctrica
antes de trabajar en el sistema de SubDrive/MonoDrive o cerca de él. LOS CAPACITORES DENTRO
DEL CONTROLADOR DE SUBDRIVE/MONODRIVE PUEDEN MANTENER UN VOLTAJE LETAL
INCLUSO DESPUÉS DE HABER SIDO DESCONECTADOS.
DEJE TRANSCURRIR 5 MINUTOS PARA QUE SE DESCARGUE EL VOLTAJE INTERNO PELIGROSO
ANTES DE SACAR LA CUBIERTA DEL SUBDRIVE/MONODRIVE.
No use el motor en áreas donde se practique natación.
Antes de empezar
s ATENCIÓN
!
Este equipo debe ser instalado por personal técnicamente calicado. El incumplimiento de las
regulaciones locales y nacionales, así como de las recomendaciones de Franklin Electric, puede
resultar en descargas eléctricas, riesgo de incendio, desempeño insatisfactorio o fallas en el equipo.
Puede obtener la información para instalarlo de los fabricantes o distribuidores de la bomba,
o llamando directamente a Franklin Electric a nuestra línea gratuita, 1-800-348-2420.
s PRECAUCIÓN
!
Use el SubDrive/MonoDrive únicamente con los motores sumergibles Franklin Electric de
4 pulgadas indicados en este manual (vea la Tabla 2 en la pág. 19). El uso de esta unidad con otro
motor de Franklin Electric o con motores de otros fabricantes puede dañar tanto el motor como
los componentes electrónicos. En aplicaciones donde la demanda de agua es crítica, deben estar
disponibles un sensor de presión de repuesto y/o un sistema de respaldo si el variador falla y no
funciona como debería.
Este aparato no se destina para utilizarse por personas (incluyendo niños) cuyas capacidades fÍsicas,
sensoriales o mentales sean diferentes o estén reducidas, o carezcan de experiencia o conocimiento, a
menos que dichas personas reciban una supervisión o capacitación para el funcionamiento del aparato
por una persona responsible de su seguridad. Los niños deben supervisarse para asegurar que ellos no
empleen los aparatos como juguete.
Si el cordón de alimentación es dañado, éste debe ser reemplazado únicamente por personal calicado
o el fabricante.
Índice
Antes de empezar ................................................................2
Declaración de cumplimiento.......................................................4
Especicaciones - MonoDrive/MonoDriveXT ..........................................5
Especicaciones - SubDrive15......................................................6
Especicaciones - SubDrive20......................................................7
Especicaciones - SubDrive30......................................................8
Descripción .....................................................................9
Características y benecios ........................................................9
En la caja ......................................................................12
Cómo funciona .................................................................12
Pantalla del variador .............................................................13
Ubicación del variador ...........................................................13
Consideraciones especiales para el uso al aire libre ...................................14
Tendido de los cables............................................................15
Conexión a tierra ................................................................17
Tamaño del fusible/disyuntor y de los cables .........................................18
Tamaño del generador ...........................................................19
Tamaño del tanque y la bomba ....................................................20
Tamaño y desempeño de la bomba .................................................21
• SubDrive15 .................................................................21
• SubDrive20 .................................................................22
• SubDrive30 .................................................................23
• MonoDrive .................................................................24
• MonoDriveXT ...............................................................24
Procedimiento de instalación ......................................................25
Montaje del variador ...........................................................25
Cableado del variador ..........................................................27
Conguración del variador ........................................................30
Conguración básica (interruptores DIP) ...........................................30
Selección del variador..........................................................30
Tamaño del motor/bomba.......................................................31
Sensibilidad de baja carga (si necesaria) ...........................................31
Selección de ujo estable .......................................................32
Conguración avanzada (wi/aplicación móvil FE Connect) .............................33
Conectar a wi................................................................33
Tener acceso al variador........................................................34
Accesorios.....................................................................35
Códigos de diagnóstico de fallas...................................................36
Resolución de problemas para el SubDrive...........................................38
Garantie limitée .................................................................40

4
SubDrive/MonoDrive
Declaración de cumplimiento
INFORMACIÓN DE LA FUNDACIÓN NACIONAL DE SANIDAD
El(los) sensor(es) adjunto(s) de acero inoxidable han sido evaluados por Underwriters
Laboratories Inc. y se determinó que cumplen con los requerimientos de bajos niveles
de plomo descritos en NSF/ANSI 61 - Anexo G.
Archivo UL: MH18335
NOTA DE PROTECCIÓN DE SOBRECARGA DEL MOTOR:
Los componentes electrónicos del variador proporcionan protección de sobrecarga del
motor al evitar que la corriente del motor exceda el Amperaje de factor de servicio (SFA)
máximo. El variador no detecta la sobretemperatura del motor.
PROTECCIÓN DE CIRCUITOS DERIVADOS
La protección integrada de estado sólido contra cortocircuitos no proporciona protección
a los circuitos derivados. La protección de los circuitos derivados debe proporcionarse de
acuerdo con el Código Eléctrico Nacional y cualquier código local adicional o equivalente.
El variador deberá protegerse únicamente por un fusible o disyuntor de tiempo inverso de
300V, máximo 300% de la corriente de carga total de salida del motor congurada según
se indica en la sección de Fusible/disyuntor abajo.
MÓDULO wi
El módulo wi ha sido probado y cumple con la parte 15 de las disposiciones de la FCC.
Estos límites están diseñados para proveer protección razonable contra interferencias
dañinas. Este equipo genera, usa y puede radiar energía de radiofrecuencia por periodos
limitados (aproximadamente 15 minutos) y, si el variador no está instalado y se usa
de conformidad con las instrucciones, puede ocasionar interferencia dañina a las
radiocomunicaciones. Sin embargo, no hay garantía de que no ocurrirá interferencia en
una instalación en particular. Si este equipo ocasiona interferencia dañina a la recepción
de radio o televisión, lo cual puede determinarse encendiendo y apagando el equipo,
se recomienda al usuario a tratar de corregir la interferencia tomando una o más de las
siguientes medidas:
• Reorientar o reubicar la antena receptora.
• Incrementar la separación entre el equipo y el receptor.
• Conectar el equipo a un contacto en un circuito diferente al que está conectado
el receptor.
• Consultar al distribuidor o a un técnico experimentado en radio/televisión para
obtener ayuda.
No. de modelo Descripción del modelo
587 020 5003 MonoDrive
587 020 5103 SubDrive15
587 020 5203 MonoDriveXT
587 020 5303 SubDrive20
587 020 5403 SubDrive30
E184902

SubDrive/MonoDrive
5
Especicaciones - MonoDrive/MonoDriveXT
MonoDrive MonoDriveXT
No. de modelo NEMA 3R
(interior/exterior) 587 020 5003 587 020 5203
Entrada de
alimentación
eléctrica
Voltaje 208/230 VCA 208/230 VCA
Incorporación Monofásico Monofásico
Frecuencia 60/50 Hz 60/50 Hz
Corriente (máxima) 11 A 16 A
Factor de potencia ~ 0.95 ~ 0.95
Potencia
(descanso)* 4 W 5 W
Potencia (máxima) 2.5 kW 4.2 kW
Calibre(s) del cable Consulte los códigos federales, estatales y locales
para las instalaciones de circuitos derivados
Consulte los códigos federales, estatales y locales para
las instalaciones de circuitos derivados
Salida al motor
Voltaje 230 VCA 230 VCA
Eliminación Monofásico, (3-cables) Monofásico, (3-cables)
Rango de
frecuencia 30-63 Hz 30-63 Hz
Corriente (máxima) 10.4 A 13.2 A
Calibre(s) del cable Vea la pág. 18 para obtener información del disyuntor
y el tamaño de los cables
Vea la pág. 18 para obtener información del disyuntor y
el tamaño de los cables
Ajuste de la
presión
Congurado de
fábrica 50 psi (3.4 bar) 50 psi (3.4 bar)
Rango de ajuste 25-80 psi (1.7 - 5.5 bar) 25-80 psi (1.7 - 5.5 bar)
Condiciones de
operación(A)
Temperatura
(a 230 VCA de
entrada)
-13 °F a 122 °F (-25 °C a 50 °C) -13 °F a 122 °F (-25 °C a 50 °C)
Humedad relativa 20-95%, sin condensación 20-95%, sin condensación
Tamaño del
controlador(B)
(aproximado)
NEMA 3R 9-3/4" x 16-3/4" x 5-1/4" : 20 lb
(25 x 42.5 x 13 cm) : (9 kg)
9-3/4" x 19-3/4" x 5-1/4" : 26 lb
(25 x 50 x 13 cm) : (11.8 kg)
Para uso con
Bomba (60 Hz)
Bomba de 0.5 hp (0.37 kW) con motor serie 214505
Bomba de 0.75 hp (0.55 kW) con motor serie 214507
Bomba de 1.0 hp (0.75 kW) con motor serie 214508
Bomba de 1.0 hp (0.75 kW) con motor serie 214508
Bomba de 1.5 hp (1.1 kW) con motor serie 224300
Bomba de 2.0 hp (1.5 kW) con motor serie 224301
Motor FE
serie 214505 (0.5 hp, 0.37 kW) monofásico, 3 cables
serie 214507 (0.75 hp, 0.55 kW) monofásico, 3 cables
serie 214508 (1.0 hp, 0.75 kW) monofásico, 3 cables
serie 214508 (1.0 hp, 0.75 kW) monofásico, 3 cables
serie 224300 (1.5 hp, 1.1 kW) monofásico, 3 cables
serie 224301 (2.0 hp, 1.5 kW) monofásico, 3 cables
Notas:
(A) La temperatura de funcionamiento se indica para la potencia de salida máxima, cuando se instala como se indica en la sección de
“Selección de la ubicación del variador” en la pág. 13-14.
(B) Vea la pág. 25-26 para obtener información detallada del montaje del variador.
* La potencia de descanso se dene como la potencia de entrada usada por el variador cuando el variador no está operando el motor,
el ventilador del variador está apagado y no hay comunicaciones activas. La potencia de descanso se incrementa en 1 W si está
encendido el wi.

6
SubDrive/MonoDrive
Especicaciones – SubDrive15
SubDrive15
No. de modelo NEMA 3R (interior/exterior) 587 020 5103
Entrada de
alimentación
eléctrica
Voltaje 208/230 VCA
Incorporación Monofásico
Frecuencia 60/50 Hz
Corriente (máxima) 12 A
Factor de potencia ~ 0.95
Potencia (descanso)*4 W
Potencia (máxima) 2.5 kW
Calibre(s) del cable Consulte los códigos federales, estatales y locales para las instalaciones de circuitos
derivados
Salida al motor
Voltaje 230 VCA
Eliminación Monofásico (3-cables) O
Trifásico
Rango de frecuencia
bomba 30-77 Hz (3/4 hp, 0.55 kW)
bomba 30-72 Hz (1 hp, 0.75 kW)
bomba 30-60 Hz (1.5 hp, 1.1 kW)
30-63 Hz (motores monofásicos)
Corriente (máxima) 5.9 A/fase
Calibre(s) del cable Vea la pág. 18 para obtener información del disyuntor y el tamaño de los cables
Ajuste de la
presión
Congurado de fábrica 50 psi (3.4 bar)
Rango de ajuste 25-80 psi (1.7 y 5.5 bar)
Condiciones de
operación(A)
Temperatura (a 230 VCA de entrada) -13 °F a 122 °F (-25 °C a 50 °C)
Humedad relativa 20-95%, sin condensación
Tamaño del
controlador(B)
(aproximado)
NEMA 3R 9-3/4" x 19-3/4" x 5-1/4" : 26 lb
(25 x 50 x 13 cm) : (11.8 kg)
Para uso con(C)
Bomba (60 Hz)
Bomba de 0.5 hp (0.37 kW) con motor serie 214505
Bomba de 0.75 hp (0.55 kW) con motor serie 214507
Bomba de 1.0 hp (0.75 kW) con motor serie 214508
Bomba de 0.75 hp (0.55 kW), 1.0 hp (0.75 kW) o bomba de 1.5 hp (1.1 kW) con motor
serie 234514
Motor FE
serie 214505 (0.5 hp, 0.37 kW) monofásico, 3 cables
serie 214507 (0.75 hp, 0.55 kW) monofásico, 3 cables
serie 214508 (1.0 hp, 0.75 kW) monofásico, 3 cables
serie 234514 (1.5 hp, 1.1 kW) trifásico
Notas:
(A) La temperatura de funcionamiento se indica para la potencia de salida máxima, cuando se instala como se indica en la sección de
“Selección de la ubicación del variador” en la pág. 13-14.
(B) Vea la pág. 25-26 para obtener información detallada del montaje del variador.
(C) Cuando un SubDrive15 se usa con un motor monofásico de 3 cables (ver selección del variador en la pág. 30-31), aplican las
especicaciones de la bomba y del motor del MonoDrive en la página 5.
* La potencia de descanso se dene como la potencia de entrada usada por el variador cuando el variador no está operando el motor,
el ventilador del variador está apagado y no hay comunicaciones activas. La potencia de descanso se incrementa en 1 W si está
encendido el wi.

SubDrive/MonoDrive
7
Notas:
(A) La temperatura de funcionamiento se indica para la potencia de salida máxima, cuando se instala como se indica en la
sección de “Selección de la ubicación del variador” en la pág. 13-14.
(B) Vea la pág. 25-26 para obtener información detallada del montaje del variador.
(C) Cuando un SubDrive20 se usa con un motor monofásico de 3 cables (ver selección del variador en la pág. 30-31), aplican las
especicaciones de la bomba y del motor del MonoDrive en la página 5.
* La potencia de descanso se dene como la potencia de entrada usada por el variador cuando el variador no está operando el
motor, el ventilador del variador está apagado y no hay comunicaciones activas. La potencia de descanso se incrementa en 1 W
si está encendido el wi.
Especicaciones - SubDrive20
SubDrive20
No. de modelo NEMA 3R (interior/exterior) 587 020 5303
Entrada de
alimentación
eléctrica
Voltaje 208/230 VCA
Incorporación Monofásico
Frecuencia 60/50 Hz
Corriente (máxima) 19 A
Factor de potencia ~ 0.95
Potencia (descanso)* 5 W
Potencia (máxima) 4.2 kW
Calibre(s) del cable Consulte los códigos federales, estatales y locales para las instalaciones de circuitos
derivados
Salida al motor
Voltaje 230 VCA
Eliminación Monofásico (3-cables) O
Trifásico
Rango de frecuencia
Bomba 30-78 Hz (1 hp, 0.75 kW)
Bomba 30-72 Hz (1,5 hp, 1.1 kW)
bomba 30-60 Hz (2 hp, 1.5 kW)
30-63 Hz (motores monofásicos)
Corriente (máxima) 8.1 A/fase
Calibre(s) del cable Vea la pág. 18 para obtener información del disyuntor y el tamaño de los cables
Ajuste de la
presión
Congurado de fábrica 50 psi (3.4 bar)
Rango de ajuste 25-80 psi (1.7 - 5.5 bar)
Condiciones de
operación(A)
Temperatura (a 230 VCA de
entrada) -13 °F a 122 °F (-25 °C a 50 °C)
Humedad relativa (NEMA 3R) 20-95%, sin condensación
Tamaño del
controlador(B)
(aproximado)
NEMA 3R 9-3/4" x 19-3/4" x 5-1/4" : 26 lb
(25 x 50 x 13 cm) : (11.8 kg)
Para uso con(C)
Bomba (60 Hz)
Bomba de 1.0 hp (0.75 kW) con motor serie 214508
Bomba de 1.5 hp (1.1 kW) con motor serie 224300
Bomba de 2.0 hp (1.5 kW) con motor serie 224301
Bomba de 0.75 hp (0.55 kW), 1.0 hp (0.75 kW) o bomba de 1.5 hp (1.1 kW) con motor
serie 234514
Bomba de 1.0 hp (0.75 kW), 1.5 hp (1.1 kW) o bomba de 2.0 hp (1.5 kW) con motor
serie 234315
Motor FE
serie 214508 (1.0 hp, 0.75 kW) monofásico, 3 cables
serie 224300 (1.5 hp, 1.1 kW) monofásico, 3 cables
serie 224301 (2.0 hp, 1.5 kW) monofásico, 3 cables
serie 234514 (1.5 hp, 1.1 kW) trifásico
serie 234315 (2.0 hp, 1.5 kW) trifásico

8
SubDrive/MonoDrive
Especicaciones - SubDrive30
SubDrive30
No. de modelo NEMA 3R (interior/exterior) 587 020 5403
Entrada de
alimentación
eléctrica
Voltaje 208/230 VCA
Incorporación Monofásico
Frecuencia 60/50 Hz
Corriente (máxima) 23 A
Factor de potencia ~ 0.95
Potencia (descanso)* 5 W
Potencia (máxima) 4.2 kW
Calibre(s) del cable Consulte los códigos federales, estatales y locales para las instalaciones de circuitos
derivados
Salida al motor
Voltaje 230 VCA
Eliminación Monofásico (3-cables) O
Trifásico
Rango de frecuencia
Bomba 30-78 Hz (1.5 hp, 1.1 kW)
Bomba 30-70 Hz (2 hp, 1.5 kW)
Bomba 30-60 Hz (3 hp, 2.2 kW)
30-63 Hz (motores monofásicos)
Corriente (máxima) 10.9 A/fase
Calibre(s) del cable Vea la pág. 18 para obtener información del disyuntor y el tamaño de los cables
Ajuste de la
presión
Congurado de fábrica 50 psi (3.4 bar)
Rango de ajuste 25-80 psi (1.7 - 5.5 bar)
Condiciones de
operación(A)
Temperatura (a 230 VCA de
entrada) -13 °F a 122 °F (-25 °C a 50 °C)
Humedad relativa 20-95%, sin condensación
Tamaño del
controlador(B)
(aproximado)
NEMA 3R 9-3/4" x 19-3/4" x 5-1/4" : 26 lb
(25 x 50 x 13 cm) : (11.8 kg)
Para uso con(C)
Bomba (60 Hz)
Bomba de 1.0 hp (0.75 kW) con motor serie 214508
Bomba de 1.5 hp (1.1 kW) con motor serie 224300
Bomba de 2.0 hp (1.5 kW) con motor serie 224301
Bomba de 0.75 hp (0.55 kW), 1.0 hp (0.75 kW) o bomba de 1.5 hp (1.1 kW) con motor
serie 234514
Bomba de 1.0 hp (0.75 kW), 1.5 hp (1.1 kW) o bomba de 2.0 hp (1.5 kW) con motor
serie 234315
Bomba de 1.5 hp (1.1 kW), 2.0 hp (1.5 kW) o bomba de 3.0 hp (2.2 kW) con motor serie
234316
Motor FE
serie 214508 (1.0 hp, 0.75 kW) monofásico, 3 cables
serie 224300 (1.5 hp, 1.1 kW) monofásico, 3 cables
serie 224301 (2.0 hp, 1.5 kW) monofásico, 3 cables
serie 234514 (1.5 hp, 1.1 kW) trifásico
serie 234315 (2.0 hp, 1.5 kW) trifásico
serie 234316 (3.0 hp, 2.2 kW) trifásico
Notas:
(A) La temperatura de funcionamiento se indica para la potencia de salida máxima, cuando se instala como se indica en la sección de
“Selección de la ubicación del variador” en la pág. 13-14.
(B) Vea la pág. 25-26 para obtener información detallada del montaje del variador.
(C) Cuando un SubDrive30 se usa con un motor monofásico de 3 cables (ver selección del variador en la pág. 30-31), aplican las
especicaciones de la bomba y del motor del MonoDrive en la página 5.
* La potencia de descanso se dene como la potencia de entrada usada por el variador cuando el variador no está operando el motor,
el ventilador del variador está apagado y no hay comunicaciones activas. La potencia de descanso se incremente en 1 W si está
encendido el wi.
SubDrive/MonoDrive
9
Descripción y características
Descripción
El SubDrive/MonoDrive de Franklin Electric es un controlador de frecuencia variable que
usa componentes electrónicos avanzados para proteger el motor y mejorar las bombas
estándar usadas en aplicaciones de sistemas hidráulicos residenciales y comerciales
ligeros. Cuando se usa con los motores Franklin Electric (ver la Tabla 2 en la página 19),
el SubDrive/MonoDrive proporciona una presión constante al eliminar los efectos de ciclos
de presión asociados con los sistemas de pozo de agua convencionales.
Características y benecios
Presión de agua constante
Los equipos SubDrive/MonoDrive de Franklin Electric permiten regular la presión de
manera uniforme, mediante componentes electrónicos avanzados que impulsan un motor
y una bomba estándar según la demanda de presión, indicada por un sensor de gran
precisión, duradero, diseñado para trabajos pesados. Al ajustar la velocidad del motor y de
la bomba, el SubDrive/MonoDrive puede ofrecer una presión constante de manera able,
incluso si cambia la demanda del suministro de agua. Por ejemplo, si se presenta una
demanda leve en el sistema, como un grifo de baño, el motor y la bomba funcionan a una
velocidad relativamente baja. A medida que aumenta la demanda del sistema, al abrir más
grifos o usar aparatos electrodomésticos, la velocidad aumenta para mantener la presión
deseada en el sistema. Usando el sensor de presión suministrado, la presión del sistema
puede congurarse en el rango de 25 – 80 psi (1.7 – 5.5 bar).
Tamaño reducido del tanque
Los sistemas convencionales usan tanques grandes para poder almacenar agua, mientras
que el SubDrive utiliza un tanque más pequeño para mantener la presión constante. Ver la
tabla 3 en la página 20 para obtener más información de los requerimientos del tamaño del
tanque.
Tamaño reducido de la bomba
Los controladores SubDrive/MonoDrive adaptan la bomba a la aplicación al ajustar la
velocidad de la bomba y el motor. En las aplicaciones del SubDrive, una bomba con una
potencia de la mitad de la potencia del motor puede usarse cuando es dimensionado
adecuadamente. Vea la información sobre tamaño de la bomba en la página 21.
Reducción de voltaje por sobrecalentamiento
El controlador SubDrive/MonoDrive está diseñado para un funcionamiento normal en
temperaturas ambientes hasta de 125 ºF (50 ºC) mientras el voltaje de entrada se mantenga
en 230 VCA. Bajo condiciones extremas de temperatura, el controlador reducirá la potencia
de salida con el n de evitar el daño potencial a la vez que trata de proveer de agua.
La potencia total de la bomba es restaurada cuando la temperatura del controlador baja
hasta un nivel seguro.
10
SubDrive/MonoDrive
Sensibilidad de baja carga ajustable
El controlador SubDrive/MonoDrive está congurado de fábrica para asegurar la detección
de fallas de baja carga en una amplia variedad de aplicaciones de bombeo. En casos poco
comunes (como con ciertas bombas en pozos poco profundos) este nivel de activación
puede dar como resultado fallas falsas. Si la bomba se instala en un pozo poco profundo,
active el controlador y observe cómo funciona el sistema. Cuando el regulador comience
a regular la presión, verique el funcionamiento a varias velocidades de ujo para
cerciorarse de que la sensibilidad predeterminada no ocasione fallas falsas por baja carga.
Vea la sección de Conguración básica en la página 29 para obtener más detalles del
poteciómetro de baja carga.
Relé de operación del sistema
El SubDrive/MonoDrive está equipado con una salida regulada la cual se activa (el contacto
normalmente abierto se cerrará) cuando el sistema está bombeando de manera activa.
Se suministran ambos contactos, normalmente abierto (NOI) y normalmente cerrado (NC).
Estos contactos son clasicados 5 A en 250 VCA/30 VDC para cargas de uso general,
o 2 A en 250 VCA/30 VDC para cargas inductivas (es decir,el relé). No se recomienda usar
esta función de relé para controlar sistemas críticos (dosicación química, etc.).
Arranque suave del motor
Normalmente, cuando hay una demanda de agua, el SubDrive/MonoDrive estará operando
para mantener la presión del sistema con precisión. Cuando el SubDrive/MonoDrive detecta
que se está usando el agua, el controlador siempre "aumenta en rampa" la velocidad del
motor mientras incrementa el voltaje gradualmente, dando como resultado un motor más
frío y una corriente de arranque más baja comparada con los sistemas convencionales de
agua. En los casos donde la demanda de agua es pequeña, el sistema puede encenderse
y apagarse a baja velocidad. Debido a la capacidad de arranque suave del controlador y
del diseño robusto del sensor, esto no dañará el motor o el sensor de presión.
Corrección del factor de potencia
La corrección activa del factor de potencia (PFC) minimiza la entrada de la corriente RMS
permitiendo al variador usar una onda de corriente sinusoidal de entrada más limpia.
Esto permite una reducción en el tamaño del cable de la alimentación eléctrica de entrada
cuando se compara a aplicaciones similares sin la corrección del factor de potencia,
porque se usa menos corriente en promedio para el variador para una carga dada cuando
se comparara con los dispositivos con no PFC.
Aplicación móvil para conexión a wi y FE
La conectividad a wi se incluye en el dispositivo para permitir que se haga la conexión
entre el variador y un solo dispositivo con wi (teléfono inteligente, tableta, etc.).
Esta conexión se puede usar para poder ajustar las conguraciones avanzadas, las
características del variador y ver la historia de fallas cuando se usa la aplicación móvil FE
Connect. Vea la sección de Conguración avanzada en la página 33 de este manual para
obtener más detalles sobre las capacidades de la conexión wi.
Desactivación por baja carga ajustable
La desactivación por baja carga determina por cuánto tiempo esperará el variador antes de
intentar operar después de un evento de baja carga. El tiempo establecido es 5 minutos, pero
el usuario lo puede ajustar mediante la interfaz de wi desde 1 minuto hasta 48 horas.
SubDrive/MonoDrive
11
Historia del diagnóstico de fallas del sistema
Adicionalmente a la regulación de la presión de la bomba y al control preciso de la
operación del motor, el SubDrive/MonoDrive vigila constantemente el desempeño del
sistema y puede detectar una variedad de condiciones anormales. En muchos casos,
el controlador compensará, según sea necesario, para mantener la operación continua del
sistema, sin embargo, si hay un riesgo alto de daño al equipo, el controlador protegerá al
sistema y mostrará la condición de falla. Si es posible, el controlador tratará de volver a
arrancar cuando la condición de falla se termine. Cada vez que se detecta una falla en el
sistema, el variador registra la falla y el tiempo de operación que pasó cuando se detectó
la falla. Se graban un máximo de 500 eventos y se pueden ver usando la conexión wi.
Falla de conexión a tierra
El variador está equipado con protección de falla de conexión a tierra para la salida del
motor. En caso de que se detecte una fuga de corriente hacia tierra en la salida del motor,
el variador indicará una falla de conexión a tierra (código de falla F16). Para obtener más
información, consulte la tabla de códigos de diagnóstico de fallas en la parte posterior de
este manual.
Modos de choque ajustables
Usando la conguración avanzada (aplicación Connect de wi y FE), se puede cambiar
la conguración del modo de choque y del tamaño del tanque del variador. El modo de
choque controla qué tan fuerte bombeará el variador por un periodo muy corto de tiempo
justo antes de intentar apagarse. El variador se envía con la conguración preestablecida
que es compatible con la mayoría de las aplicaciones de SubDrive. Para las aplicaciones
con tanques de presión grandes o solución de problemas desconectada, el modo de
choque se puede modicar para ser más agresivo. El comportamiento del sistema debe
vigilarse cuando se ajusten estas conguraciones para asegurar una operación apropiada.
Partes reemplazables
Ventilador de enfriamiento
En caso de un ventilador de enfriamiento falle y ocurran fallas de sobrecalientamiento
del variador frecuentes (código de falla F7), el ventilador podrá ser reemplazado. Vea la
sección de Accesorios para obtener más información de los juegos de reemplazo del
ventilador NEMA 3R.
Tablero de presión de entrada
En caso de que un rayo cree un pico en el sensor de presión de entrada al variador, la tarjeta
de entrada de presión puede dañarse haciendo que no opere el variador. En lugar de
reemplazar el variador completo, se puede reemplazar la tarjeta de presión de entrada
como intento de reparar el variador. Vea la sección de Accesorios para obtener más
información acerca del juego de repuesto de la tarjeta de entrada del sensor de presión.

12
SubDrive/MonoDrive
Terminales
del sensor
de presión
Suministro eléctrico
desde el disyuntor
BOMBA
MOTOR
A
D
BC
Válvula de alivio
de presión
Sensor de presión
El sensor de presión debe
instalarse parado y en
posición vertical con la
tapa de goma instalada.
Alimentación
eléctrica
al motor
En la caja
A. Unidad controladora
B. Sensor de presión y tapa
C. Herramienta de regulación
del sensor
D. Cable del sensor
E. Guía de instalación
F. Accesorio para la liberación
de presión
Cómo funciona
El equipo eléctrico SubDrive/MonoDrive está diseñado para ser parte de un sistema que
consiste de solo cuatro (4) componentes:
A. Bomba estándar y motor Franklin Electric
B. Controlador SubDrive/MonoDrive
C. Tanque pequeño de presión (vea la Tabla 3 de la pág. 20)
D. Sensor de presión Franklin Electric (aprobado por NSF 61)
SubDrive15/20/30
MonoDrive, MonoDriveXT
Manual del propietario
SubDrive/MonoDrive
13
Pantalla del variador
Sistema inactivo
Cuando la unidad del SubDrive/MonoDrive tiene alimentación eléctrica y está inactiva
(no está bombeando agua), la pantalla estará iluminada y se mostrará “- - -”.
Variador en operación
Cuando la unidad del SubDrive/MonoDrive está controlando el motor y la bomba,
la pantalla estará iluminada y la frecuencia del motor/la bomba (en Hertz o ciclos por
segundo) se mostrará en la pantalla.
Falla detectada
Cuando se detecta una condición de falla en el sistema, la pantalla del variador se
iluminará en rojo y el código de falla será mostrado. Todos los códigos de falla comienzan
con “F” seguidos de un número de uno o dos dígitos. Para obtener más información,
consulte la tabla de códigos de diagnóstico de fallas en la parte posterior de este manual.
Ubicación del variador
El controlador del SubDrive/MonoDrive está diseñado para la operación a temperaturas
ambientes de -13 °F a 122 °F (-25 °C a 50 °C) a una salida de 230 VCA. Las siguientes
recomendaciones ayudarán a la selección de la ubicación apropiada para el controlador.
• Se recomienda una T para montar el tanque, el sensor de presión, el manómetro y
la válvula de alivio en un ramal. Si no se usa la T del tanque, el sensor de presión
se debe ubicar a 6 pies (1.8 metros) del tanque de presión para minimizar las
uctuaciones de presión. No debe haber codos entre el tanque y el sensor de presión.
• La unidad debe estar montada en una estructura de soporte resistente como una
pared o un poste de soporte. Tome en cuenta el peso de la unidad.
• Los componentes electrónicos adentro del SubDrive/MonoDrive se enfrían con
aire. Como resultado, debe haber al menos 6 pulgadas (15.24 cm) de separación,
en cada lado, y debajo de la unidad, para dejar que uya el aire.
• La ubicación de la montura debe tener acceso a una fuente de alimentación eléctrica
de 230 VCA y al cableado sumergible del motor. Para evitar posible interferencia
con otros electrodomésticos, consulte la sección de la ruta de cableado de este
manual y observe todas las precauciones con respecto a la ruta del cableado
eléctrico.

14
SubDrive/MonoDrive
Consideraciones especiales para el uso al aire libre
El controlador es adecuado para uso al aire libre con una clasicación NEMA 3R; sin embargo,
se deben tener en cuenta las siguientes consideraciones cuando se instale el controlador al aire libre:
• La unidad se DEBE instalar en posición vertical, el extremo del cableado orientado hacia
abajo, y la cubierta debe estar asegurada apropiadamente (también es aplicable a las
instalaciones interiores).
• El controlador se deberá montar sobre una supercie o una placa trasera que no sea más
pequeña que las dimensiones del gabinete del controlador.
• Los gabinetes NEMA 3R son capaces de resistir la lluvia cayendo hacia abajo solamente.
El controlador se debe proteger del agua aplicada con manguera o salpicada así como de
las ráfagas de lluvia. Si no se hace así el controlador puede fallar.
• El controlador NO debe colocarse en un lugar donde le dé la luz del sol directamente o en
otra ubicación sujeta a temperaturas extremas o humedad.
Panel de la
entrada de servicio
Monte el variador a una estructura de
soporte resistente (pared o placa trasera).
Monte el variador tan cerca
como sea posible al panel
de la entrada de servicio.
Use un circuito de derivación dedicado para el
variador. Cablear directamente desde el panel de
la entrada de servicio. Fusible indicado/disyuntor
indicado “Ver la Tabla 1 en la página 18 para el
tamaño del fusible y del disyuntor”.
Deje un espacio libre alrededor
del variador de 6" (15 cm) para
el enfriamiento.
Use los agujeros y guías que
se proporcionan.
(NO taladre agujeros
en el variador.)
TIERRA TIERRA
Varilla de conexión a tierra para
la entrada de servicio
Cablear directamente al panel de
la entrada de servicio.
NO cablear a un sub-panel
ubicado en una casa.
Panel de la
entrada de servicio
Sub-panel
DE LA CASA
TIERRA
TIERRA TIERRA
6"
15 cm
6"
15 cm
6"
15 cm
6"
15 cm
NOTA DE PROTECCIÓN DE SOBRECARGA DEL MOTOR:
La electrónica del variador proporciona protección para
la sobrecarga del motor al evitar que la alimentación
eléctrica del motor exceda el Amperaje de factor de
servicio (SFA) máximo. El variador no detecta el
sobrecalentamiento del motor.

SubDrive/MonoDrive
15
Panel de la
entrada de servicio
TIERRA TIERRA
Cuando sea posible NO coloque la alimentación
eléctrica de entrada del variador o los cables del motor en
paralelo con el cableado de la casa.
Evite colocar los cables de la casa en paralelo
con los cables del motor.
Bomba
Motor
TIERRA TIERRA
Alimentación
eléctrica
de entrada Motor
Separe la entrada de la alimentación eléctrica
y el cableado del motor al menos 8" (20.3 cm)
TIERRA
TIERRA
NO coloque los cables de
alimentación eléctrica de entrada
y los cables del motor juntos.
Sepárelos al menos 8" (20.3 cm)
Motor
Cable de salida al motor para
salir del gabinete tan pronto
como sea posible.
8"
20.3 cm
Alimentación
eléctrica
de entrada
Tendido de los cables
Para asegurar la mejor protección contra la interferencia con otros dispositivos, tome las
siguientes precauciones:
• Si el variador está instalado en áreas donde hay basuras y pequeños animales o
insectos que puedan entrar al variador, se debe instalar un juego de ltros de aire.
Vea la página de Accesorios para obtener la información de pedidos.

16
SubDrive/MonoDrive
Panel de la
entrada de servicio
TIERRA
Motor
TV
Derivación 1
Derivación 2
Derivación 3
8" (20.3 cm) mín. 8" (20.3 cm) mín.
8" (20.3 cm) mín.
Teléfono
Si es necesario instalar en paralelo, mantenga la alimentación
eléctrica de entrada del variador y los cables del motor al menos a
8" (20.3 cm) de distancia del otro cableado de la casa.
Cable de
satélite/antena
8" (20.3 cm) mín.
TIERRA
Panel de la
entrada de servicio
TIERRA
TIERRA
8" (20.3 cm) mín. 90º
OK
Cruce sobre otros circuitos
derivados y el cableado
de la casa a 90º.
8" (20.3 cm) mín.

SubDrive/MonoDrive
17
Conexión a tierra
Para asegurar la seguridad y el desempeño, cumpla los siguientes requerimientos para la
conexión a tierra:
Asegúrese de que
una varilla apropiada
de conexión a tierra
de la empresa de
servicios públicos
está presente y
conectada.
Varilla de conexión
a tierra para la
entrada de servicio
Panel de la
entrada de servicio
TIERRA TIERRA
L2
L1
Se debe conectar un cable de conexión
a tierra de la alimentación eléctrica de
entrada desde el panel de alimentación
eléctrica al variador.
Se debe conectar un cable de salida
dedicado de conexión a tierra desde
el variador al motor (los cables del
motor y los de conexión a tierra
deben atarse juntos).
Bomba
Motor
Panel de la
entrada de servicio
TIERRA TIERRA
Evite múltiples rutas a tierra.
TIERRA
TIERRA
Bomba
Motor
TIERRA

18
SubDrive/MonoDrive
Tamaño del fusible/disyuntor y de los cables
El tamaño del fusible/disyuntor indicado y la longitud máxima permisible para las conexiones de los
cables al SubDrive/MonoDrive se dan en las siguientes tablas:
Familia del
modelo
Amperes del
fusible indicado/
Disyuntor
indicado
Voltaje
de
entrada
nominal
Tamaños del cable de cobre AWG, aislante para 167 °F (75 °C) a menos
que se especique algo diferente
14 12 10 8 6 4 3 2 1 1/0 2/0
MonoDrive 15 208 80 125 205 315 500 790 980 1290 1635 - -
15 230 95 150 250 385 615 970 1200 1580 2000 - -
SubDrive15 15 208 70 110 185 280 450 710 880 1160 1465 - -
15 230 85 135 225 345 550 865 1075 1415 1795 - -
MonoDriveXT 20 208 - 85 140 220 345 550 680 895 1135 - -
20 230 - 105 175 265 425 670 835 1095 1390 - -
SubDrive20 20 208 - - 115 180 285 450 555 730 925 - -
20 230 - 85 140 220 345 550 680 895 1130 - -
SubDrive30 25 208 - - 95 145 235 370 460 605 765 - -
25 230 - - 115 180 285 455 560 740 935 - -
Tabla 1: Clasicación por tamaños del disyuntor y longitudes máximas del cable de entrada (en pies)
Basado en una caída de voltaje de 3%
Los números resaltados denotan cable con aislamiento de 194 °F (90 °C) únicamente
XXXX
Panel de la
entrada de servicio
TIERRA
TIERRA
Use la tierra del panel
de la entrada de servicio
SOLAMENTE.
NO coloque los cables de tierra separados.
El cable a tierra del motor DEBE
estar atado a los cables del motor.
Bomba
Motor

SubDrive/MonoDrive
19
Tabla 2: Máxima longitud del cable del motor (en pies)
Modelo del
controlador
Modelo del motor
Franklin Electric HP Tamaño AWG (CAE) de los cables de cobre, aislamiento de 167
o
F (75
o
C)
14 12 10 8 6 4
SubDrive15 234 514 xxxx 1.5 (1.1 kW) 420 670 1060 - - -
SubDrive20 234 315 xxxx 2.0 (1.5 kW) 320 510 810 1000 - -
SubDrive30 234 316 xxxx 3.0 (2.2 kW) 240 390 620 990 - -
MonoDrive
214 505 xxxx
214 507 xxxx
214 508 xxxx
0.5 (0.37 kW)
0.75 (0.55 kW)
1.0 (0.75 kW)
400
300
250
650
480
400
1020
760
630
-
1000
990
-
-
-
-
-
-
MonoDriveXT
214 508 xxxx
224 300 xxxx
224 301 xxxx
1.0 (0.75 kW)
1.5 (1.1 kW)
2.0 (1.5 kW)
250
190
190
400
310
250
630
480
390
990
770
620
-
1000
970
-
-
-
NOTA: 1 pie = 0.305 m
Se suministra una sección de cable de 10 pies (3.05 m) con el SubDrive/MonoDrive para conectar el sensor de presión.
NOTA:
• Las longitudes máximas permitidas de los cables son medidas entre el controlador y el motor.
• No se deben utilizar cables de aluminio con el SubDrive/MonoDrive.
• Todo el cableado debe estar de conformidad con los códigos del “National Electrical Code” y los códigos locales.
• Los amperes mínimos del disyuntor del MonoDrive pueden ser más bajos que las especicaciones del Manual
AIM para los motores indicados debido a las características de arranque suave del controlador del MonoDrive.
• Los amperes mínimos del disyuntor del SubDrive pueden parecer sobrepasar las especicaciones del Manual
AIM para los motores indicados debido a que los controladores del SubDrive se alimentan a partir de un servicio
monofásico en lugar de uno trifásico.
• Nota de protección de sobrecarga del motor: Los componentes electrónicos del variador proporcionan
protección de sobrecarga del motor al evitar que la corriente del motor exceda el Amperaje de factor de servicio
(SFA) máximo. El variador no detecta el sobrecalentamiento del motor.
Tamaño del generador
El dimensionamiento básico del generador para el sistema eléctrico del SubDrive/MonoDrive Franklin es 1.5
veces los vatios máximos de entrada consumidos por el variador, redondeado al siguiente tamaño normal
del generador.
Tamaños mínimos recomendados del generador:
MonoDrive
1/2 hp = 2000 Watts (2 kW)
3/4 hp = 3000 Watts (3 kW)
1 hp = 3500 Watts (3.5 kW)
MonoDriveXT
1.5 hp = 4000 Watts (4 kW)
2 hp = 5000 Watts (5 kW)
SubDrive15 = 3500 Watts (3.5 kW)
SubDrive20 = 5700 Watts (6 kW)
SubDrive30 = 7000 Watts (7 kW)
Nota: No se debe utilizar en un interruptor de circuito de fallos de conexión a tierra (GFIC). Si se usa un generador regulado
externamente, verique que el voltaje, los hertzios y la velocidad de descanso son apropiados para alimentar el variador.

20
SubDrive/MonoDrive
Clasicación del ujo de la bomba Modelo del controlador Tamaño mínimo del tanque
Menos de 12 gpm (45.4 lpm)
SubDrive15 o MonoDrive 2 galones (7.6 litros)
SubDrive20 4 galones (15.1 litros)
SubDrive30 o MonoDriveXT 4 galones (15.1 litros)
12 gpm (45.4 lpm) y superior
SubDrive15 o MonoDrive 4 galones (15.1 litros)
SubDrive20 8 galones (30.3 litros)
SubDrive30 o MonoDriveXT 8 galones (30.3 litros)
El ajuste de carga previa del tanque de presión debe ser el 70% del ajuste del sensor de
presión del sistema como se indica en la Tabla 4. Se debe seleccionar el diámetro mínimo
de la tubería de suministro para que no exceda una velocidad máxima de 8 pies/s (2.4 m/s)
(Vea la Tabla 5 abajo para obtener mayor información del diámetro mínimo de la tubería).
Tabla 3: Tamaño mínimo del tanque de presión (capacidad total)
Medidor de presión
Sensor
de presión
Válvula de alivio
de presión Válvula de drenaje
Bomba
Motor
6 pies (1.83 m) máx.
El ajuste de carga previa del tanque de presión debe ser el 70%
del ajuste del sensor de presión del sistema.
El sensor de presión debe
instalarse parado y en posición
vertical con la tapa de goma
instalada.
SENSOR DE PRESIÓN
Accessories
Pressure Sensor Kit - replacement sensor with 10 ft of 22 AWG cable and sensor adjustment tool: 223 995 901
(SubDrive75/100/150, MonoDrive, MonoDriveXT, SubDrive2W)
Sensor Cable Kit - 100 feet of 22 AWG pressure sensor cable: 223 995 902
(SubDrive75/100/150, MonoDrive, MonoDriveXT, SubDrive2W)
Pressure Sensor Kit - replacement sensor, pressure shut-off switch with 10 ft of 22 AWG cable and sensor
adjustment tool: 225 495 901 (SubDrive300)
Sensor Cable Kit - 100 ft of 22 AWG pressure sensor and pressure shut-off switch cable: 225 495 902 (SubDrive300)
Fan Replacement Kit - refer to Installation Manual, Franklin Electric hotline or www.franklin-electric.com for additional information.
Girar a la derecha (en sentido
de las manecillas del reloj)
para incrementar los valores
de presión establecidos.
Girar a la izquierda (en sentido
opuesto a las manecillas del
reloj) para disminuir los valores
de presión establecidos.
1/4 vuelta = 3 psi
Sensor de presión (clasificación NSF61) con
valores preestablecidos de fábrica para 50 psi
Posicione el sensor de presión
entre vertical (preferido) y horizontal.
No lo instale invertido. No se debe
colocar en la luz directa del sol.
7/32" llave (incluida)
"
Punto de ajuste del
sensor de presión (PSI)
25
30
35
40
45
55
60
65
70
75
80
Precarga del tanque
de presión (± 2 PSI)
18
21
25
28
32
35
39
42
46
49
53
56
Guía de regulación de la presión
50 (valor de fábrica)
Las bombas sumergibles
pueden desarrollar una
presión muy alta en
algunas situaciones.
Siempre instale una válvula
de alivio de presión con
capacidad de pasar el flujo
completo de la bomba a
100 psi. Instale la válvula
de alivio de presión cerca
del tanque de presión y
conéctela a un drenaje
capaz de admitir el flujo
completo del sistema.
ADVERTENCIA
El sensor de presión
incluido con este controlador
debe configurarse entre 25 y
80 psi (1.7 y 5.5 bar)
únicamente.
ADVERTENCIA
(Descarga al drenaje apto para la
salida máxima de la bomba a la
presión de descarga).
Velocidad máxima 8 pies/s. (2.4 m/s)
Diámetro mínimo
de la tubería
Gpm (lpm) máximos
1/2" 4.9 (18.5)
3/4" 11.0 (41.6)
1" 19.6 (74.2)
1-1/4" 30.6 (115.8)
1-1/2" 44.1 (166.9)
2" 78.3 (296.4)
2-1/2" 176.3 (667.4)
Tabla 4 Tabla 5
Tamaño del tanque y la bomba
El SubDrive/MonoDrive sólo requiere un tanque de presión pequeño para mantener una
presión constante. (Vea el tamaño recomendado del tanque en la tabla que sigue). Para
bombas de 12 gpm (45.4 lpm) o superiores, se recomienda un tanque ligeramente más
grande para una regulación óptima de la presión. El SubDrive/MonoDrive también puede
usar un tanque existente de capacidad mucho mayor.

SubDrive/MonoDrive
21
Tamaño y desempeño de la bomba
SubDrive15
El SubDrive15 se puede usar con bombas de 3/4 hp (0.55 kW) que estén montadas en
motores trifásicos Franklin Electric de 1.5 hp (1.1 kW). En general, el SubDrive15 mejorará
el desempeño de una bomba de 3/4 hp (0.55 kW) para un desempeño similar o superior al de
la bomba convencional de 1.5 hp (1.1 kW) de la misma clasicación de ujo (serie de bomba).
Para elegir la bomba apropiada
de 3/4 hp (0.55 kW), elija
primero una curva de 1.5 hp
(1.1 kW) que cumpla los
requerimientos de cabeza y
ujo de la aplicación. Use la
bomba de 3/4 hp (0.55 kW)
en la misma serie de bombas
(clasicación del ujo).
El SubDrive15 ajustará la
velocidad de esta bomba para
producir el desempeño de la
curva de 1.5 hp (1.1 kW).
En la gráca de la derecha
se muestra un EJEMPLO de
lo anterior. Consulte la curva
de la bomba que el fabricante
suministre correspondiente a
su aplicación especíca.
El SubDrive15 también puede ajustarse para operar una bomba de 1.0 hp (0.75 kW) o
1.5 hp (1.1 kW) si se desea, pero bombas más grandes de todas formas producirán para
la curva de 1.5 hp (1.1 kW) y solo podrán operarse con un motor de 1.5 hp (1.1 kW).
Para operar una bomba de diferente tamaño, se debe posicionar un interruptor DIP para
seleccionar la clasicación correcta de la bomba. De lo contrario, el SubDrive15 puede
activar fallas erróneas.
Vea la sección de Conguración básica en este manual para obtener información del
interruptor DIP y la conguración.
s ADVERTENCIA
!
El contacto con los componentes eléctricos internos puede producir descargas eléctricas graves
o fatales.
NO trate, bajo ninguna circunstancia, de cambiar la conguración del interruptor DIP hasta
haber cortado la alimentación eléctrica y dejado que pasen 5 minutos para que se disipe el voltaje
interno. Para que el ajuste del interruptor DIP surta efecto, se debe cortar la alimentación eléctrica.
EJEMPLO 1
Desempeño típico del SubDrive15

22
SubDrive/MonoDrive
SubDrive20
El SubDrive20 se puede usar con bombas de 1.0 hp (0.75 kW) que estén montadas en
motores trifásicos Franklin Electric de 2.0 hp (1.5 kW). En general, el SubDrive20 mejorará el
desempeño de una bomba de 1.0 hp (0.75 kW) para un desempeño similar o superior al de la
bomba convencional de 2.0 hp (1.5 kW) de la misma clasicación de ujo (serie de bomba).
Para elegir la bomba
apropiada de 1.0 hp (0.75 kW),
elija primero una curva de
2.0 hp (1.5 kW) que cumpla
los requerimientos de cabeza
y ujo de la aplicación. Use la
bomba de 1.0 hp (0.75 kW)
en la misma serie de bombas
(clasicación del ujo).
El SubDrive20 ajustará la
velocidad de esta bomba para
producir el desempeño de la
curva de 2.0 hp (1.5 kW).
En la gráca de la derecha
se muestra un EJEMPLO.
Consulte la curva de la bomba
que el fabricante suministre
correspondiente a su aplicación especíca.
El SubDrive20 también puede ajustarse para operar una bomba de 1.5 hp (1.1 kW) o
2.0 hp (1.5 kW) si se desea, pero bombas más grandes de todas formas producirán para
la curva de 2.0 hp (1.5 kW) y solo podrán operarse con un motor de 2.0 hp (1.5 kW).
Para operar una bomba de diferente tamaño, se debe posicionar un interruptor DIP para
seleccionar la clasicación correcta de la bomba. De lo contrario, el SubDrive20 puede
activar fallas erróneas.
Vea la sección de Conguración básica en este manual para obtener información del
interruptor DIP y la conguración.
s ADVERTENCIA
!
El contacto con los componentes eléctricos internos puede producir descargas eléctricas graves
o fatales.
NO trate, bajo ninguna circunstancia, de cambiar la conguración del interruptor DIP hasta
haber cortado la alimentación eléctrica y dejado que pasen 5 minutos para que se disipe el voltaje
interno. Para que el ajuste del interruptor DIP surta efecto, se debe cortar la alimentación eléctrica.
EJEMPLO 2
Desempeño típico del SubDrive20

SubDrive/MonoDrive
23
SubDrive30
El SubDrive30 se puede usar con bombas de 1.5 hp (1.1 kW) que estén montadas en
motores trifásicos Franklin Electric de 3.0 hp (2.2 kW). En general, el SubDrive30 mejorará el
desempeño de una bomba de 1.5 hp (1.1 kW) para un desempeño similar o superior al de la
bomba convencional de 3.0 hp (2.2 kW) de la misma clasicación de ujo (serie de bomba).
Para elegir la bomba
apropiada de 1.5 hp
(1.1 kW), elija primero
una curva de 3.0 hp
(2.2 kW) que cumpla los
requerimientos de cabeza
y ujo de la aplicación
Use la bomba de 1.5 hp
(1.1 kW) en la misma serie
de bombas (clasicación
del ujo). El SubDrive30
ajustará la velocidad
de esta bomba para
producir el desempeño
de la curva de 3.0 hp
(2.2 kW). En la gráca de
la derecha se muestra un
EJEMPLO. Consulte la
curva de la bomba que
el fabricante suministre
correspondiente a su aplicación especíca.
El SubDrive30 también puede ajustarse para operar una bomba de 2.0 hp (1.5 kW) o 3.0 hp
(2.2 kW) si se desea, pero bombas más grandes de todas formas producirán para la curva
de 3.0 hp (2.2 kW) y solo podrán operarse con un motor de 3.0 hp (2.2 kW). Para operar
una bomba de diferente tamaño, se debe posicionar un interruptor DIP para seleccionar
la clasicación correcta de la bomba. De lo contrario, el SubDrive30 puede activar fallas
erróneas.
Vea la sección de Conguración básica en este manual para obtener información del
interruptor DIP y la conguración.
s ADVERTENCIA
!
El contacto con los componentes eléctricos internos puede producir descargas eléctricas graves
o fatales.
NO trate, bajo ninguna circunstancia, de cambiar la conguración del interruptor DIP hasta
haber cortado la alimentación eléctrica y dejado que pasen 5 minutos para que se disipe el voltaje
interno. Para que el ajuste del interruptor DIP surta efecto, se debe cortar la alimentación eléctrica.
EJEMPLO 3
Desempeño típico del SubDrive30
24
SubDrive/MonoDrive
MonoDrive
El MonoDrive está diseñado para convertir un sistema de bomba tradicional de 1/2 hp
(0.37 kW), 3/4 hp (0.55 kW) o 1.0 hp (0.75 kW) en un sistema de presión constante
y velocidad variable reemplazando simplemente la caja de control de 3 cables y el
interruptor de presión. La salida máxima de la bomba usando el MonoDrive es similar
al desempeño que se logra usando una caja de control convencional. Por lo tanto, los
criterios de selección de bombas son los mismos que si se utilizara una caja de control.
Consulte la documentación del fabricante de la bomba para obtener detalles sobre el
procedimiento de selección de bombas.
Si una bomba y un motor como los descritos anteriormente ya están instalados en
el sistema y los componentes del sistema de pozo están en buenas condiciones de
funcionamiento, no se requerirán actualizaciones del sistema. Sin embargo, si la bomba
y el motor existentes no han sido escogidos correctamente, o si los componentes del
sistema de pozo no están en buenas condiciones de funcionamiento, el MonoDrive no se
puede utilizar para corregir el problema o prolongar la vida útil de componentes usados.
Si no se equipara la conguración a la clasicación de la bomba y el motor se pueden
activar fallas erróneas. Vea la sección de Conguración básica en este manual para
obtener información del interruptor DIP y la conguración.
MonoDriveXT
El MonoDriveXT está diseñado para convertir un sistema de bomba tradicional de
1.0 hp (0.75 kW), 1.5 hp (1.1 kW) o 2.0 hp (1.5 kW) en un sistema de presión constante
y velocidad variable reemplazando simplemente la caja de control de 3 cables y el
interruptor de presión. La salida máxima de la bomba usando el MonoDriveXT es similar
al desempeño que se logra usando una caja de control convencional. Por lo tanto, los
criterios de selección de bombas son los mismos que si se utilizara una caja de control.
Consulte la documentación del fabricante de la bomba para obtener detalles sobre el
procedimiento de selección de bombas.
Si una bomba y un motor como los descritos anteriormente ya están instalados en
el sistema y los componentes del sistema de pozo están en buenas condiciones de
funcionamiento, no se requerirán actualizaciones del sistema. Sin embargo, si la bomba
y el motor existentes no han sido escogidos correctamente, o si los componentes del
sistema de pozo no están en buenas condiciones de funcionamiento, el MonoDriveXT
no se puede utilizar para corregir el problema o prolongar la vida útil de componentes
usados.
Si no se equipara la conguración a la clasicación de la bomba y el motor se pueden
activar fallas erróneas. Vea la sección de Conguración básica en este manual para
obtener información del interruptor DIP y la conguración.

SubDrive/MonoDrive
25
Procedimiento de instalación
Montaje del variador
La unidad SubDrive/MonoDrive se deberá montar sobre una supercie o una placa trasera que
no sea más pequeña que las dimensiones del controlador para poder mantener la clasicación
NEMA 3R. El controlador debe montarse al menos a 18" (45.7 cm) por encima del suelo.
El controlador se monta usando la pestaña para colgar en la parte superior del gabinete,
así como los dos (2) agujeros para montaje adicionales en la parte trasera del controlador.
Las tres (3) ubicaciones de los agujeros deben usarse para asegurar que el controlador
está montado de forma segura a la placa trasera o a la pared.
"B"
"A"
157.4
[6.19]
"C"
"D"
133.9
[5.27]
250.5
[9.86]

26
SubDrive/MonoDrive
MODELO “A” “B” “C” “D”
SubDrive15, MonoDrive 464.2
[18.28]
355.2
[13.98]
454.7
[17.90]
427.4
[16.83]
SubDrive20, SubDrive30, MonoDriveXT 539.4
[21.24]
430.4
[16.94]
529.9
[20.86]
502.6
[19.79]
11
[0.43]
53.2
[2.09]
53.9
[2.12]
140
[5.51]
2X 7.7
[0.31]

SubDrive/MonoDrive
27
1. Verique que la alimentación eléctrica se ha cortado en el disyuntor principal.
2. Verique que el circuito derivado dedicado al SubDrive/MonoDrive esté equipado con un
disyuntor de tamaño apropiado. (Vea la Tabla 1, pág. 18 para obtener el tamaño mínimo
del disyuntor.)
3. Use conectores de alivio de presión o tuberías apropiados. Vea abajo los tamaños de los
agujeros de conducto y oricios ciegos.
4. Retire la tapa del SubDrive/MonoDrive.
5. Haga pasar los conductores del motor por la abertura en el lado derecho de la parte
inferior de la unidad y conéctelos en las posiciones del bloque de terminales marcadas
(Cable de tierra de color verde), rojo, amarillo y negro.
s ADVERTENCIA
!
Puede ocurrir un choque eléctrico serio o fatal como resultado de conectar de forma incorrecta
el motor a la terminal de tierra, el controlador del SubDrive/MonoDrive, tuberías metálicas u otro
material metálico cercano al motor, que esté utilizando cables más grandes que los cables del
motor. Para reducir el riesgo de descargas eléctricas, desconecte la alimentación eléctrica antes
de trabajar en el sistema hidráulico o en sus alrededores.
No use el motor en áreas donde se practique natación.
AGUJERO Ø 28.6
[1.13]
ORIFICIO CIEGO Ø 34.9
[1.37]
[0.5]
AGUJERO Ø 12.7
[1.13]
ORIFICIO CIEGO Ø 28.6
]0.88[
AGUJERO Ø 22.2
ORIFICIO CIEGO Ø 22.2
[0.88]
47.7
[1.88]
97.7
[3.85]
110.7
[4.36] 97.7
[3.85]
33.6
[1.32]
40.3
[1.59]
198.3
[7.81]
82.3
[3.24]
Cableado del variador

28
SubDrive/MonoDrive
6. Haga pasar los terminales de 230 VCA por
la abertura más grande en el lado izquierdo
de la parte inferior del controlador SubDrive/
MonoDrive y conéctelos a los terminales
marcados como L1, L2 y .
7. Para los cables del sensor de presión, use la
abertura más pequeña de la parte inferior de
la unidad SubDrive/MonoDrive a la derecha de
los cables de alimentación de entrada. Conecte
los cables rojo y negro a los terminales del
bloque de terminales en la tarjeta de presión
de entrada marcado como “sensor de presión”
(intercambiable) con un destornillador pequeño
(suministrado). Gire la conexión como se
muestra en la gura a la derecha.
Nota: La tarjeta de presión de entrada tiene dos
(2) terminales nombradas “AUX IN” que pueden
usarse para proporcionar un control auxiliar
para el variador. Esta conexión está en serie
con la señal de entrada del sensor de presión y
es una conexión no electricada. El dispositivo
conectado a esta terminal debe ser una conexión
cerrada o en cortocircuito cuando se desea que
el variador bombee agua (si la presión del sistema
está por debajo del punto establecido de presión
del sensor de presión). Si el “AUX IN” es un
circuito abierto, el variador permanecerá en modo de
descanso sin importar la presión del sistema.
Para usar conexiones “AUX IN” se debe eliminar la
pestaña de desacoplamiento en la esquina inferior
derecha de la tarjeta de presión de entrada. Si
la pestaña de desacoplamiento no se quita, las
conexiones “AUX IN” siempre estarán en cortocircuito.
Si se quita la pestaña de desacoplamiento y las
terminales “AUX IN” no se usan para un dispositivo
auxiliar, las conexiones “AUX IN” deben ponerse en
cortocircuito manualmente.
Vea la gura a la derecha para la ubicación de esta
pestaña. La tarjeta de presión de entrada debe
quitarse del variador antes de abrir la pestaña de
desacoplamiento para evitar daños al variador.
s PRECAUCIÓN
!
Para trabajos de acondicionamiento (por ejemplo, MonoDrive), asegúrese de vericar la
integridad de los cables de suministro eléctrico y de conexión del motor.
Para ello es necesario medir la resistencia del aislamiento, usando un megóhmetro adecuado.
* Ver el Manual AIM Manual para obtener las especicaciones.
CONTACT:
5A 250VAC
5A30VDC
COIL:12VDC
G68-2114P
-US
12VDC
MADE IN
CHINA
OMRON
COM NC NO
FAN
YELRED BLK
PRESSURE
SWITCH
Tighten terminals to 15 in-lbs.
L2L1
RUN
RELAY
Suitable for use on a circuit capable of
delivering not more than 5000 rms
symmetrical amperes, 250 V maximum.
Use 75 ºC CU wire rate 300 V min.
Installation/Operation manual may
be ordered by contacting your local
Franklin Electric representative.
Tighten terminals to 15 in-lbs.
Use 75 ºC CU wire rated 300 V min
CONTACT:
5A 250VAC
5A30VDC
COIL:12VDC
G68-2114P
-US
12VDC
MADE IN
CHINA
OMRON
SubDrive/MonoDrive
29
Nota: Con el controlador se suministra un tramo de cable de 10 pies (3 m) para el sensor
de presión, pero se puede usar un cable 22 AWG similar para distancias hasta de 100 pies
(30 m) del sensor de presión. Puede solicitar un tramo de cable de 100 pies (30 m) para
el sensor de presión al distribuidor local de Franklin Electric. Se debe usar cable de baja
capacidad si el sensor de presión se conecta con un cable que no fue suministrado por
Franklin Electric. Las longitudes de cable mayores de 100 pies (30 metros) no se deben
usar ya que pueden ocasionar que el variador opere de forma incorrecta.
(Vea la sección de Accesorios en la página 35 para obtener más detalles).
8. Verique que la unidad del SubDrive/MonoDrive esté debidamente congurada para el
caballaje del motor y de la bomba que se va a usar. (Vea la sección de Tamaño de la
bomba en la página 24 para obtener información sobre la conguración del variador).
9. Vuelva a instalar la cubierta. Apriete el tornillo a 10 pulg-lb (1.1 Nm).
10. Conecte el otro extremo del cable del sensor de presión, con los dos terminales
planos, al sensor de presión. Las conexiones son intercambiables
11. Ajuste la carga previa del tanque de presión al 70% del valor deseado de presión del
agua. Para vericar la carga previa del tanque, libere la presión del sistema de agua
abriendo un grifo con el variador apagado. Vea la Tabla 4 en la página 20.
Mida la carga previa del tanque con un manómetro en la válvula de llenado y haga los
ajustes necesarios.
12. El sensor de presión transmite la presión del sistema al controlador del SubDrive/
MonoDrive. El sensor viene ajustado de fábrica a 50 psi (3.4 bar), pero el instalador lo
puede reajustar mediante el siguiente procedimiento:
a. Retire la tapa de goma del extremo.
b. Use la llave Allen de 7/32" (suministrada) para girar el tornillo de ajuste en
sentido de las manecillas del reloj para aumentar la presión, y en sentido contrario
a las manecillas del reloj para reducirla. El rango de ajuste va de 25 a 80 psi
(1.7 - 5.5 bar). Nota: 1/4 de vuelta = 3 psi (0.2 bar) aproximadamente.
c. Vuelva a colocar la tapa de goma del extremo.
d. Cubra los terminales del sensor de presión con la tapa de goma suministrada
(gura X). No coloque la tapa bajo la luz directa del sol.

30
SubDrive/MonoDrive
s PRECAUCIÓN
Cuando incremente la presión, no exceda el tope mecánico en el sensor de presión u 80 psi
(5.5 bar). El sensor de presión puede dañarse.
NOTA: Verique que el sistema esté debidamente conectado a tierra por todo el trayecto
hasta el panel del servicio de entrada. Una mala conexión a tierra puede hacer que se
pierda la protección contra picos de voltaje y ocasionar interferencia.
Conguración del variador
Conguración básica (interruptores DIP)
Para una conguración básica, DIP SW1 Posición 1 (interruptor de conexión FE) debe
estar en posición “APAGADO” (abajo) para que se reconozcan el interruptor DIP y la
conguración del potenciómetro de baja carga.
Selección del variador
Los SubDrives tienen la capacidad de desempeñarse como MonoDrives cuando es
necesario (El SubDrive15 puede congurarse como un MonoDrive. El SubDrive20 y el
SubDrive30 pueden congurarse como un MonoDriveST). Si desea operar un motor
monofásico con una unidad de SubDrive, asegúrese que el DIP SW1 Posición 2 está en
posición de “ENCENDIDO” (arriba). Esto se indica con “MD” impreso arriba de DIP SW1
Posición 2 en el escudo negro. Si usa un SubDrive con un motor trifásico, asegúrese
que el DIP SW1 Posición 2 está en posición de “APAGADO” (abajo), indicado con “SD”
impreso abajo de DIP SW1 Posición 2 en el escudo negro (esta es la conguración
predeterminada para las unidades del SubDrive).
Nota: Cuando opere un SubDrive como un MonoDrive, las especicaciones de la bomba y
del motor del MonoDrive en la Página 5 son aplicables.
s ADVERTENCIA
!
El contacto con los componentes eléctricos internos puede producir descargas eléctricas graves
o fatales.
NO trate, bajo ninguna circunstancia, de cambiar la conguración del interruptor DIP hasta
haber cortado la alimentación eléctrica y dejado que pasen 5 minutos para que se disipe el voltaje
interno. Para que el ajuste del interruptor DIP surta efecto, se debe cortar la alimentación eléctrica.
!

SubDrive/MonoDrive
31
Seleccione el interruptor DIP uno (1) del SW2 que corresponde al caballaje del motor
que se está usando y el interruptor DIP uno (1) de SW3 que corresponda al caballaje de
la bomba que se está usando. Los valores del caballaje correspondiente están impresos
arriba en los diagramas del SW2 y SW3 en el escudo negro. Seleccionar ninguno o más
de un interruptor en SW2 o SW3 dará como resultado una falla del interruptor DIP indicada
por F24 en la pantalla.
Sensibilidad de baja carga (si necesaria)
La sensibilidad de baja carga se DEBE ajustar solo cuando el SubDrive/MonoDrive está
APAGADO. La nueva conguración no entrará en efecto hasta que el variador esté apagado.
El controlador SubDrive/MonoDrive está congurado de fábrica para asegurar la detección
de fallas de baja carga en una amplia variedad de aplicaciones de bombeo. En casos
poco comunes (como con ciertas bombas en pozos poco profundos) este nivel de
activación puede dar como resultado fallas falsas. Si la bomba se instala en un pozo poco
profundo, active el controlador y observe cómo funciona el sistema. Cuando el controlador
comience a regular la presión, verique el funcionamiento a varias velocidades de ujo
para cerciorarse de que la sensibilidad predeterminada no ocasione fallas falsas por baja
carga.
Si hace falta reducir la sensibilidad a la baja carga, corte la alimentación eléctrica y espere
cinco minutos para que se descargue el controlador. Cuando se disipe el voltaje interno,
ubique el potenciómetro de baja carga en la esquina superior derecha de la tarjeta de
interfaz del usuario como se muestra en la siguiente gura.
Tamaño del motor/bomba
El SubDrive/MonoDrive se puede congurar para operar congurando solo dos (2)
interruptores DIP, uno (1) para el tamaño del motor y uno (2) para el tamaño de la bomba.
Los interruptores DIP están localizados en la parte superior de la tarjeta de interfaz de
usuario como se muestra en la gura abajo.
Nota: Cuando opere un SubDrive como un MonoDrive, las especicaciones de la bomba y
del motor del MonoDrive en la Página 5 son aplicables.
“Valores de caballaje”

32
SubDrive/MonoDrive
Sensibilidad a la baja carga: Conguración de baja profundidad
Si la bomba se instala en un pozo sumamente bajo (por ejemplo, un pozo artesiano) y
el sistema se sigue disparando, entonces el potenciómetro de baja carga (Pot) debe
regularse a un ajuste de menor sensibilidad, girándolo en sentido de las manecillas del
reloj. Revise el nivel de disparo de baja carga y repita si es necesario.
Sensibilidad a la baja carga: Conguración de profundidad
En casos donde la bomba se instala a gran profundidad, ponga en marcha el sistema con
la descarga abierta para achicar el pozo y observe cuidadosamente que una baja carga
se detecte apropiadamente. Si el sistema no se activa correctamente, deberá ajustar el
Pot de baja carga, girándolo en sentido de las manecillas del reloj a un valor de mayor
sensibilidad.
Selección de ujo estable
El controlador SubDrive/MonoDrive viene con una conguración de fábrica que garantiza
una respuesta rápida para mantener la presión constante. En casos especiales (como
cuando hay un grifo antes del tanque de presión), puede ser necesario ajustar el
controlador para que ofrezca un mejor control.
Si se utiliza el controlador en un sistema que tenga un grifo de agua antes del tanque
de presión y cerca al cabezal del pozo, o donde se escuchan variaciones del PMA a
través de los tubos, puede ser necesario ajustar el tiempo de respuesta del control de
presión. Después de habilitar esta función, el instalador debe revisar los cambios de ujo
y presión para vericar que no haya excesos. Un tanque de presión más grande y/o un
margen mayor entre la presión de regulación y la válvula de alivio pueden ser necesarios
a medida que la función de Flujo Estable reduce el tiempo de reacción del controlador a
los cambios de ujo repentinos.
Si necesita ajustar el control de presión, desconecte la fuente de alimentación y deje
que el controlador se descargue. Espere 5 minutos para que se disipe el voltaje interno,
ubique el interruptor DIP marcado como “SW1”. Mueva DIP SW1 Posición 4 a la posición
“ENCENDIDO” (arriba).
Potenciómetro de
sensibilidad de
baja carga

SubDrive/MonoDrive
33
Conguración avanzada (wi/aplicación móvil FE
Connect)
Algunas características avanzadas pueden modicarse cuando se conecta el SubDrive/
MonoDrive mediante wi usando la aplicación móvil FE Connect. Siga las instrucciones
abajo para conectar el variador y tener acceso a conguraciones y características
avanzadas.
Conectar a wi
1. El radio del wi del variador solo puede conectarse dentro de quince (15) minutos
después de encendido. Si el variador ha estado alimentado por más de quince (15)
minutos, apague y encienda la unidad del SubDrive/MonoDrive.
2. Unos segundos después de la inicialización siguiente al encendido, FE Connect se
iluminará con luz ja para indicar que hay una conexión disponible. La luz de FE
Connect se localiza justo abajo de la ventana transparente de la pantalla.
3. Abra la conguración de la conexión de wi en el dispositivo que desee usar para
conectar el variador. Este método es similar al que se usa para conectarse a un
punto de acceso normal para wi. En la lista de conexiones disponibles de wi
localice el punto de acceso llamado “FECNCT_XXXXX”, donde “XXXXX” es la parte
nal del número de serie del variador que se está conectando.
4. Conectar al punto de acceso de wi. La luz de FE Connect en el variador estará
intermitente para indicar que se está haciendo una conexión. Solo un (1) dispositivo
se puede conectar a un variador al mismo tiempo.
Nota: La conexión a wi estará activa por una cantidad ilimitada de tiempo mientras
el dispositivo móvil no se desconecte del wi del variador. Si se interrumpe la
conexión, el wi del variador estará disponible para volverse a conectar durante una
(1) hora después de la desconexión. Si desea volver a conectar el wi del variador
después de que haya transcurrido una hora, el variador debe volver a apagarse y
encenderse.
s ADVERTENCIA
!
El contacto con los componentes eléctricos internos puede producir descargas eléctricas graves
o fatales.
NO trate, bajo ninguna circunstancia, de cambiar la conguración del interruptor DIP hasta
haber cortado la alimentación eléctrica y dejado que pasen 5 minutos para que se disipe el voltaje
interno. Para que el ajuste del interruptor DIP surta efecto, se debe cortar la corriente.
La luz de FE Connect
34
SubDrive/MonoDrive
Tener acceso al variador
Después de lograr una conexión exitosa con el variador, active la aplicación móvil FE
Connect. La aplicación móvil FE Connect puede descargarse de la tienda de aplicaciones
de Apple o de Google Play dependiendo del dispositivo que se esté usando.
Conguración
La pantalla de conguración permite la conguración de características adicionales del
variador incluyendo:
• Salida del variador*
• Tamaño del motor*
• Tamaño de la bomba*
• Sensibilidad a la baja carga*
• Desactivación por baja carga
• Frecuencia mínima
• Frecuencia máxima
• Modo de choque
• Modo de tanque grande
• Modo agresivo
• Detección de tubería rota
• Flujo estable*
• Unidades (HP o kW)
* Para poder cambiar y usar las conguraciones de esta página para la salida del variador,
el tamaño de la bomba, la sensibilidad de la baja carga y el ujo estable, el interruptor FE
Connect DIP (SW1, Posición 1) en el variador debe estar en "ENCENDIDO". De lo contrario,
el variador regresará a la conguración preestablecida del tamaño del motor, tamaño de
la bomba y sensibilidad a la baja carga hecha mediante los interruptores DIP y la perilla
giratoria de sensibilidad a la baja carga en el mismo variador.
Supervisión
Esta pantalla permite una supervisión del sistema en tiempo real incluyendo:
• Estado del sistema
• Voltaje de entrada
• Voltaje de salida
• Corriente de salida
• Velocidad del motor
• Información del sistema (modelo del variador, versión del hardware, versión del
software)
Hojas de información
Esta pantalla permite ver y enviar por correo electrónico las hojas de información de fallas y
cambios de conguración. Esta pantalla también muestra el tiempo total de activación y el
tiempo de operación del motor.

SubDrive/MonoDrive
35
Accesorio Detalle Usar con Número de
pieza
Juego de ltro de aire Ayuda a evitar que los insectos entren y dañen los
componentes internos del variador Todos los modelos 226 550 901
Alternador doble Permite que un sistema de agua alterne entre dos
bombas paralelas controladas por SubDrives separados Todos los modelos 585 001 2000
Filtro (entrada) Filtro usado en el lado de entrada del variador para
ayudar a eliminar la interferencia Todos los modelos 225 198 901
Filtro (salida) Filtro usado en el lado de salida del variador para ayudar
a eliminar la interferencia
Todos los modelos (excluyendo
SD300) 225 300 901
Filtro (condensadores de picos) Condensador usado en el panel del servicio para ayudar
a eliminar la interferencia de la alimentación eléctrica SD15, SD20, SD30, MD, MDXT 225 199 901
Pararrayos Monofásico (alimentación eléctrica de entrada) Monofásico (alimentación eléctrica de
entrada) 150 814 902
Juego de reemplazo del ventilador
de NEMA 3R Ventilador de repuesto SD15 y MD 226 545 901
Juego de reemplazo del ventilador
de NEMA 3R Ventilador de repuesto SD20, SD30, MDXT 226 545 902
Sensor de presión
(alta: 75-150 psi, clasicado NSF 61)
Ajusta la presión en el sistema de agua de 75 a 150 psi
(cable de 2 derivaciones) Todos los modelos 225 970 901
Sensor de presión
(Repuesto estándar: 25-80 psi,
clasicado NSF 61)
Ajusta la presión en el sistema de agua de 25 a 80 psi
(cable de 2 derivaciones) Todos los modelos 223 995 901
Juego de cables del sensor
(interior) 100 pies de cable AWG 22 (cable de 2 derivaciones) SD15, SD20, SD30, MD y MDXT 223 995 902
Cable listo para enterrar del sensor Diseñado para funcionar en una zanja subterránea sin el
uso de tuberías que lo rodeen (cable de 4 derivaciones)
Todos los modelos - 10 pies (3 m)
Todos los modelos - 30 pies (9 m)
Todos los modelos - 100 pies (30.5 m)
225 800 901
225 800 902
225 800 903
Juego de aspiración del tanque Permite el uso de agua almacenada en el tanque durante
demandas de poco ujo Todos los modelos 225 770 901
Repuesto de la tarjeta de entrada
del sensor de presión
Tarjeta de repuesto para variadores que han
experimentado un pico en la entrada del sensor de
presión
Todos los modelos 226 540 901
Accesorios

CÓDIGOS DE DIAGNÓSTICO DE FALLAS
Apagar, desconectar los cables al motor y encender el SubDrive:
- Si el SubDrive no da una falla de “fase abierta” F5, entonces hay un problema con el SubDrive.
- Conecte el SubDrive a un motor seco. Si se le realiza al motor una prueba de CD y da la falla de “baja carga” (F1), el SubDrive está funcionando apropiadamente.
SOLUCIÓN DE PROBLEMAS
GUÍA DE REFERENCIA RÁPIDA
CANTIDAD DE
DESTELLOS FALLA CAUSA POSIBLE ACCIÓN CORRECTIVA
F1 BAJA CARGA DEL
MOTOR
- Pozo que se ha bombeado demasiado
- Eje o acople averiados
- Filtro bloqueado, bomba gastada
- Bomba bloqueada por aire/gas
- SubDrive no está correctamente configurado
para el extremo de la bomba
- Sensibilidad a la baja carga configurada
incorrectamente
- Frecuencia cercana al máximo con menos de la sensibilidad a la baja carga configurada (potenciómetro o wifi)
- El sistema extrae agua hasta la entrada de la bomba (sin agua).
- Bomba con poca carga y estática alta: reiniciar el potenciómetro para menor sensibilidad, sino falta agua
- Verificar la rotación de la bomba (SubDrive únicamente); si es necesario, reconectar para obtener una correcta rotación
- Bomba bloqueada por aire/gas: de ser posible, configurar mayor profundidad en el pozo para reducir
- Verificar la correcta configuración de los interruptores DIP
- Verificar la configuración de la sensibilidad de baja carga (configuración del potenciómetro o wifi, el que corresponda)
F2 BAJO VOLTAJE
- Bajo voltaje de línea
- Cables de entrada mal conectados
- Conexión floja en el interruptor o en panel
- Voltaje bajo de línea, aproximadamente menos de 150 VCA (intervalo de funcionamiento normal = 190 a 260 VCA)
- Verificar conexiones eléctricas de entrada y corregir o ajustar si es necesario
- Corregir tensión de entrada: verificar el disyuntor o fusibles; póngase en contacto con la empresa eléctrica
F3 SOBRECORRIENTE/
BOMBA BLOQUEADA
- Desalineación de motor y/o bomba
- Arrastre de motor y/o bomba
- Motor y/o bomba bloqueados
- Abrasivos en bomba
- Exceso en la longitud del cable del motor
- Amperaje por encima de SFL a 30 Hz.
- Quitar y reparar o reemplazar si fuera necesario
- Reducir la longitud del cable del motor. Seguir la tabla de longitudes máximas para el motor.
F4
(MonoDrive y
MonoDriveXT
únicamente)
CABLEADO
INCORRECTO
- MonoDrive únicamente
- Valores de resistencia incorrectos en los
contactos principales y de arranque
- Resistencia incorrecta en la prueba de CD en el arranque
- Verificar el cableado, el tamaño del motor y la configuración del interruptor DIP; ajustar o reparar según sea necesario
F5 CIRCUITO ABIERTO
- Conexión floja
- Motor o cable de bajada defectuosos
- Motor incorrecto
- Lectura abierta en la prueba de CD en el arranque.
- Verificar cable de bajada y resistencia del motor, ajustar conexiones de salida, reparar o reemplazar según sea necesario.
Utilizar motor "en seco" para verificar las funciones del variador. Si el variador no funciona y muestra falla de baja carga,
reemplazar el variador
F6 CORTOCIRCUITO
- Cuando la falla se indica inmediatamente
después de conectar la alimentación,
el cortocircuito se deberá a una conexión floja,
a un motor, empalme o cable defectuosos
- El amperaje superó 50 amperes en la prueba de CD en el arranque o el amperaje SF durante el funcionamiento
- Cableado de salida incorrecto, corto de fase a fase, corto de fase a tierra en cableado o motor
- Si la falla está presente después de reiniciar y quitar los contactos del motor, reemplazar el variador
F7 VARIADOR
SOBRECALENTADO
- Alta temperatura ambiente
- Rayos solares directos
- Obstrucción en el flujo de aire
- El disipador térmico del variador ha excedido la temperatura máxima nominal; debe descender a menos de 194 °F (90 °C)
para reiniciar
- Ventilador bloqueado o inoperable, temperatura ambiental por encima de 122 °F (50 °C), rayos solares directos, flujo de
aire bloqueado
- Reemplazar el ventilador o reubicar el variador según sea necesario
- Quitar las basuras del ventilador de entrada/salida
- Quitar y limpiar el juego de filtros de aire opcionales (si están instalados)
F9 FALLA INTERNA EN
LA PCB - Se detectó una falla interna en el variador - Póngase en contacto con el personal de servicio de Franklin Electric
- La unidad puede requerir el reemplazo. Póngase en contacto con su proveedor.
F12 SOBREVOLTAJE - Alto voltaje de línea
- Voltaje interno demasiado alto
- Voltaje de línea alto
- Verificar conexiones eléctricas de entrada y corregir o ajustar si es necesario
- Si el voltaje de línea es estable y se mide por debajo de 260 VCA y el problema persiste, póngase en contacto con el
personal de servicio de Franklin Electric

CANTIDAD DE
DESTELLOS FALLA CAUSA POSIBLE ACCIÓN CORRECTIVA
F14 TUBERÍA ROTA
- Se detecta en el sistema una tubería rota o una
fuga grande
- El controlador opera a su máxima potencia
durante 10 minutos sin llegar al punto de presión
preestablecido
- Pérdida de agua considerable, como un sistema
de aspersión, no permite al sistema que alcance
el punto de presión preestablecido
- Revise el sistema para detectar una fuga grande o una ruptura en la tubería
- Si el sistema contiene un sistema de aspersión o se utiliza para llenar una alberca o cisterna, desconecte la detección de
tubería rota
F15
(SD15/20/30
ÚNICAMENTE)
DESBALANCE DE
FASE
- La corriente de la fase del motor difiere en 20%
o más.
- El motor está desgastado internamente
- La resistencia del cable del motor no es igual
- Configuración de tipo de motor incorrecta
(monfásico o trifásico)
- Verifique la resistencia del cable del motor y el devanado del motor
- Verifique que el tipo de motor concuerde con la configuración del variador (monfásico o trifásico)
F16 FALLA A TIERRA
- El cable de salida del motor está dañado o
expuesto al agua
- Corto en la fase a tierra
- Revise la resistencia del aislante del cable con un megaóhmetro (mientras no esté conectado al variador). Reemplace el
cable del motor si es necesario.
F17 FALLA EN EL SENSOR
DEL INVERSOR DE
TEMPERATURA
- El sensor de temperatura interna no está
funcionando bien
- Póngase en contacto con el personal de servicio de Franklin Electric
- Si persiste el problema, puede ser necesario que se reemplace la unidad. Póngase en contacto con su proveedor.
F18
(SD20/30/MDXT
ÚNICAMENTE)
FALLA EN EL SENSOR
DE TEMPERATURA
PFC
- El sensor de temperatura interna no está
funcionando bien
- Póngase en contacto con el personal de servicio de Franklin Electric
- Si persiste el problema, puede ser necesario que se reemplace la unidad Póngase en contacto con su proveedor.
F19 FALLA DE
COMUNICACIÓN
- El cable de conexión entre la tarjeta de pantalla/
wifi y la tarjeta de control principal está mal
conectado o desconectado
- Falla del circuito interno
- Revise el cable de conexión entre la tarjeta de pantalla/wifi y la tarjeta de control principal.
- Si persiste el problema, puede ser necesario que se reemplace la unidad Póngase en contacto con su proveedor.
F22 FALLA ESPERADA
DE LA PANTALLA/
TABLERO DE wifi
- La conexión entre la tarjeta de pantalla/wifi y
la tarjeta de control principal no se detectó al
arranque del variador
- Revise el cable de conexión entre la tarjeta de pantalla/wifi y la tarjeta de control principal.
- Si persiste el problema, puede ser necesario que se reemplace la unidad Póngase en contacto con su proveedor.
F23 FALLA EN EL
ARRANQUE DE LA
TARJETA PRINCIPAL
- Se detectó una falla interna en el variador - Póngase en contacto con el personal de servicio de Franklin Electric
- La unidad puede requerir el reemplazo. Póngase en contacto con su proveedor.
F24 CONFIGURACIÓN DEL
INTERRUPTOR DIP
INVÁLIDA
- No hay configuración del interruptor DIP o hay
más de un (1) interruptor DIP para el tamaño
del motor
- No hay configuración del interruptor DIP o hay
más de un (1) interruptor DIP para el tamaño de
la bomba
- Combinación de interruptores DIP inválida para
el tipo de variador (modo SD o MD), caballaje
del motor y caballaje de la bomba.
- Revise la configuración del interruptor DIP
CÓDIGOS DE DIAGNÓSTICO DE FALLAS
Apagado, desconecte los cables al motor y encienda el SubDrive:
- Si el SubDrive no da una falla de “fase abierta” F5, entonces hay un problema con el SubDrive.
- Conecte el SubDrive a un motor seco. Si se le realiza al motor una prueba de CD y da la falla de “baja carga” (F1), el SubDrive está funcionando apropiadamente.
SOLUCIÓN DE PROBLEMAS
GUÍA DE REFERENCIA RÁPIDA

SOLUCIÓN DE PROBLEMAS
GUÍA DE REFERENCIA RÁPIDA
RESOLUCIÓN DE PROBLEMAS PARA EL SUBDRIVE
CONDICIÓN LUCES INDICADORAS CAUSA POSIBLE ACCIÓN CORRECTIVA
SIN AGUA
NINGUNA
- Sin voltaje de alimentación
- Cable de la tarjeta de la pantalla desconectado
o flojo
- Verifique la conexión del cable entre la tarjeta de control principal y la tarjeta de pantalla
- Si el voltaje correcto está presente, reemplace el variador
VERDE
“---” EN LA PANTALLA - Circuito del sensor de presión
- Verificar que la presión del agua se encuentre por debajo del punto de referencia del sistema
- Si se quita la pestaña de desacoplamiento de la tarjeta de presión de entrada, asegurar que el
dispositivo auxiliar está conectado y el circuito está cerrado
- Si se quita la pestaña de desacoplamiento de la tarjeta de presión de entrada y no se está usando un
dispositivo auxiliar, hacer un cortocircuito manual en las conexiones “AUX IN”
- Cables de acoplamiento juntos en el sensor de presión; si la bomba arranca, reemplazar el sensor.
- Si la bomba no arranca, verificar la conexión del sensor de presión en la entrada, si está desconectado,
reparar
- Si la bomba no arranca, verificar la conexión de la tarjeta de presión de entrada, si la bomba arranca,
reemplazar el cableado
- Si la bomba no arranca con la conexión de la tarjeta de presión de entrada punteada, reemplazar la
tarjeta de presión de entrada
- Si la bomba no arranca con la nueva tarjeta de presión de entrada, reemplazar el variador
ROJO
CÓDIGO DE FALLA EN LA PANTALLA - Falla detectada - Proceder a la descripción del código de falla y reparar
VERDE
FRECUENCIA DEL MOTOR EN LA
PANTALLA
- El variador y el motor están en operación
- Interruptor o conexión de cable flojo
- Configuración del motor o la bomba incorrectos
- El motor puede estar funcionando en sentido
opuesto
- Consumo de agua en la entrada de la bomba
- Verificar la configuración para la frecuencia máxima. Si se redujo esta configuración por debajo del valor
máximo, incrementar
- Verificar las calificaciones del motor y la bomba, igualarlos a las configuraciones del motor y la bomba
en el variador (interruptor DIP o wifi)
- Verificar las conexiones del motor
- Frecuencia máxima, amperes bajos, revisar si la válvula está cerrada o atorada
- Frecuencia máxima, amperes altos, revisar si hay un agujero en la tubería
- Frecuencia máxima, amperes erráticos, revisar la operación de la bomba, arrastre de los impulsores
- Este no es un problema del variador
- Revisar todas las conexiones
- Desconectar la alimentación eléctrica y dejar que el pozo se recupere por un periodo corto de tiempo,
volver a intentar
FLUCTUACIONES DE
PRESIÓN
(REGULACIÓN
DEFICIENTE)
VERDE
FRECUENCIA DEL MOTOR EN LA
PANTALLA
- Colocación y configuración del sensor de presión
- Colocación del manómetro
- Tamaño del tanque de presión y precarga
- Fuga en el sistema
- Arrastre de aire a la entrada de la bomba
(falta de sumersión)
- Presión correcta y colocación si se necesita
- El tanque puede ser muy pequeño para el flujo del sistema
- Este no es un problema del variador
- Desconectar la alimentación eléctrica y verificar el manómetro por caída de presión
- Configurar mayor profundidad en el pozo o tanque; instalar un manguito de flujo sellado herméticamente
alrededor del tubo y cable de bajada
- Si la fluctuación se presenta solamente en derivaciones antes del sensor, activar flujo continuo
- Cambie el tamaño del tanque

SOLUCIÓN DE PROBLEMAS
GUÍA DE REFERENCIA RÁPIDA
RESOLUCIÓN DE PROBLEMAS PARA EL SUBDRIVE
CONDICIÓN LUCES INDICADORAS CAUSA POSIBLE ACCIÓN CORRECTIVA
CONTINÚA
FUNCIONANDO Y NO SE
APAGA
VERDE
FRECUENCIA DEL MOTOR EN LA
PANTALLA
- Colocación y configuración del sensor de presión
- Presión de precarga del tanque
- Daño en la turbina
- Sistema con fugas
- Tamaño incorrecto (la bomba no puede generar
suficiente cabeza)
- Revisar la frecuencia en flujos bajos, las configuraciones de presión pueden estar muy cercanas a la
cabeza máxima de la bomba
- Revisar la precarga al 70% si el tamaño del tanque es mayor que el mínimo, incrementar la precarga
(hasta 85%)
- Verificar que el sistema levantará presión y la sostendrá
- Efectúe Prueba de Vibración (bump test)
- Incremente la frecuencia mínima
FUNCIONA PERO SE
DISPARA LUZ ROJA INTERMITENTE - Verificar el código de fallas y ver la acción
correctiva - Proceder a la descripción del código de falla y reparar al reverso
BAJA PRESIÓN
VERDE
FRECUENCIA DEL MOTOR EN LA
PANTALLA
- Configuración del sensor de presión, rotación de
la bomba, tamaño de la bomba
- Alta temperatura
- Ajustar el sensor de presión, revisar la rotación de la bomba
- Revisar la frecuencia al flujo máximo, revisar la presión máxima
- Temperatura ambiental y/o del variador alta ocasionará que el variador reduzca la potencia y opere
con desempeño reducido
ALTA PRESIÓN
VERDE
FRECUENCIA DEL MOTOR EN LA
PANTALLA
- Configuración del sensor de presión
- Cable del sensor en cortocircuito
- Ajustar el sensor de presión
- Quitar el cable del sensor de la tarjeta de presión de entrada, si el variador deja de funcionar, el cable
puede tener un corto
- Quitar el cable del sensor de la tarjeta de presión de entrada, si el variador continúa funcionando,
reemplazar la tarjeta de presión de entrada
- Quitar el cable del sensor de la nueva tarjeta de presión de entrada, si el variador continúa
funcionando, reemplace el variador
- Verificar la condición del cable del sensor y reparar o reemplazar si es necesario
RUIDO AUDIBLE
VERDE
FRECUENCIA DEL MOTOR EN LA
PANTALLA
- Ventilador, hidráulico, tuberías
- En caso de ruido de ventilador excesivo, reemplazar ventilador
- Si el ruido del ventilador es normal, el variador deberá ser reubicado en un área más remota
- Si es hidráulica, intentar aumentando o disminuyendo la profundidad de la bomba
- La ubicación del tanque de presión debería ser en la entrada de la línea de agua de la casa
SIN LUCES NINGUNA - Cable de la tarjeta de la pantalla desconectado
o flojo - Verificar la conexión del cable entre la tarjeta de control principal y la tarjeta de pantalla
WIFI NO PUEDE
CONECTAR AL
VARIADOR
Luz de FE Connect fija - Intenta conectar a un variador incorrecto
- Fuera de rango de wifi del variador
- Asegurar que la SSID del wifi (nombre del punto de acceso) al que se está conectando corresponde al
variador que desea conectar
- El rango de wifi tiene un perímetro de 100 pies, debe estar más cerca del variador si las paredes o
pisos están entre usted y el variador
- El módulo de wifi no responde, apague y encienda el variador
- Activar el radio wifi en el dispositivo móvil, refrescar la lista de conexiones de wifi
Luz apagada de FE Connect - Expiró el tiempo del wifi
- Si transcurrieron más de quince (15) minutos desde el último ciclo de alimentación, apague y encienda
el variador
- Si transcurrió más de una (1) hora desde la última desconexión del wifi, apague y encienda el variador
INTERFERENCIA RFI-EMI
VERDE
FRECUENCIA DEL MOTOR EN LA
PANTALLA
- Cableado a tierra defectuoso
- Tendido de cables
- Cumple con las recomendaciones de tendido de cables y cables a tierra
- Puede ser necesario un filtro externo adicional. Vea la sección de Accesorios para la información de
pedidos
GARANTIE LIMITÉE*
ESTA GARANTÍA ESTABLECE LA ÚNICA OBLIGACIÓN DE LA EMPRESA Y LA COMPENSACIÓN EXCLUSIVA AL COMPRADOR POR
UN PRODUCTO DEFECTUOSO.
Franklin Electric Company, Inc. y sus liales (de aquí en adelante, “la Empesa”) garantizan que los productos que cubre esta garantía carecen
de defectos en cuanto al material o la mano de obra de la Empresa.
La Empresa tiene derecho a inspeccionar todo producto devuelto en garantía para conrmar si tiene defectos enel material o la mano de
obra. La Empresa tendrá el derecho exclusivo de elegir si reparará o reemplazará el equipo, las piezas o los componentes defectuosos.
El comprador deberá enviar el producto a un distribuidor autorizado de Franklin Electric para hacer uso de la garantía. Las devoluciones al
lugar de compra solo se considerarán para la cobertura de la garantía si el lugar de compra es un Distribuidor de Franklin Electric al momento
en el que se haga la reclamación. Con sujeción a los términos y las condiciones que se enumeran a continuación, la Empresa le reparará o
reemplazará al comprador cualquier parte de este producto que se compruebe estar defectuoso a causa de los materiales o la mano de obra
de la Empresa.
La Empresa considerará que los productos están garantizados durante doce meses a partir de la fecha de su instalación, o durante 24 meses
a partir de la fecha de manufactura, lo que ocurra primero.
La Empresa no se responsabilizará EN NINGÚN CASO ni estará obligada a responder por el costo del trabajo de campo u otros cargos en
los que incurra un cliente al retirar y/o instalar un producto, una pieza o un componente de este.
La Empresa se reserva el derecho de cambiar o mejorar sus productos, o cualquier parte de ellos, sin tener la obligación de proveer dicho
cambio o mejora a los productos que se han vendido con anterioridad.
ESTA GARANTÍA NO SE APLICA A los productos dañados por sucesos de fuerza mayor, incluyendo descargas eléctricas, el desgaste normal
del producto, los servicios habituales de mantenimiento y las piezas que se utilicen en relación con dichos servicios, o por cualquier otra
condición que escape al control de la Empresa.
ESTA GARANTÍA SE ANULARÁ DE INMEDIATO si se presenta cualquiera de las siguientes condiciones:
1. El producto se utilizó para otros propósitos distintos de aquellos para los que fue diseñado y fabricado;
2. El producto no se instaló de conformidad con los códigos, los reglamentos y las buenas prácticas comerciales vigentes;
3. El producto no fue instalado por un contratista certicado por Franlin; o
4. El producto resultó dañado por negligencia, abuso, accidente, aplicación indebida, modicación, alteración, instalación, operación,
mantenimiento o almacenamiento inadecuados o como resultado del abuso de los límites recomendados y establecidos en las
instrucciones del producto.
NI EL VENDEDOR NI LA COMPAÑÍA SERÁN RESPONSABLES POR NINGUNA LESIÓN, PÉRDIDA O DAÑO DIRECTO, INCIDENTAL O
CONSECUENCIAL (INCLUIDOS, A TÍTULO ENUNCIATIVO, MAS NO LIMITATIVO, LOS DAÑOS INCIDENTALES Y CONSECUENCIALES
POR PÉRDIDA DE GANANCIAS, VENTAS NO REALIZADAS, LESIONES A PERSONAS O LA PROPIEDAD, O CUALQUIER OTRA PÉRDIDA
INCIDENTAL O CONSECUENCIAL) QUE SURJAN DEL USO O DE LA IMPOSIBILIDAD DEL USO DEL PRODUCTO, Y EL COMPRADOR
ACEPTA QUE NO TENDRÁ DISPONIBLE NINGUNA OTRA COMPENSACIÓN.
LA GARANTÍA Y COMPENSACIÓN DESCRITOS EN ESTA GARANTÍA LIMITADA SON EXCLUSIVOS Y REEMPLAZAN A CUALQUIER
OTRA GARANTÍA O COMPENSACIÓN, EXPRESAS O IMPLÍCITAS, Y POR EL PRESENTE SE EXCLUYEN OTRAS GARANTÍAS Y
COMPENSACIONES INCLUYENDO, A TÍTULO ENUNCIATIVO, MAS NO LIMITATIVO, TODA GARANTÍA IMPLÍCITA DE COMERCIABILIDAD O
IDONEIDAD PARA UN PROPÓSITO DETERMINADO, Y EN LA MEDIDA EN QUE ALGUNA DE LAS DOS SEA APLICABLE A UN PRODUCTO,
ESTARÁ LIMITADA A LA DURACIÓN DE LOS PERIODOS DE LAS GARANTÍAS EXPRESAS MENCIONADOS ANTERIORMENTE.
DESCARGO DE RESPONSABILIDADES Cualquier declaración oral sobre el producto realizada por el vendedor, la Empresa, los
representantes o cualquier otra parte, no constituye garantías. El usuario no debe depender de ellas, y no forman parte de este contrato
de venta. La única obligación del vendedor y la Empresa, y la único compensación a disposición del comprador, será el reemplazo y/o la
reparación del producto por parte de la Empresa, de la forma descrita anteriormente. Antes de usar el producto, el usuario determinará la
idoneidad de este para su uso previsto, y el usuario asumirá todos los riesgos y la responsabilidad que se deriven de esta acción.
Algunos estados y países no permiten la exclusión o la limitación respecto a la duración de una garantía implícita, ni tampoco la exclusión o
la limitación respecto a los daños incidentales o consecuenciales, de manera que es posible que la exclusión o las limitaciones mencionadas
anteriormente, no sean aplicables en su caso. Esta garantía le concede derechos legales especícos, y también puede tener otos derechos
que varían según el estado y el país.
Franklin Electric, a su exclusivo criterio, puede actualizar esta garantía limitada ocasionalmente. Cualquier información conictiva en elación
a los procedimientos de la garantía, ya sea en un manual del usuario o no, queda suplantada por este documento. No obstante, todas las
referencias al periodo o longitud del periodo de una garantía, permanecerán consistentes con la garantía vigente al momento de compra.
El usuario puede hacer válida la garantía directamente con el representante donde fue adquirido el producto. Para compras en México,
puede contactar al importador Motores Franklin S.A. de C.V. En cualquier caso, deberá presentar el producto acompañado de la factura de
compra o la presente póliza de garantía.
Para poder acceder a componentes, consumibles y accesorios, el usuario puede acudir directamente con el representante donde fue
adquirido el producto. Para compras en México, puede contactar al importador Motores Franklin S.A. de C.V.
Importador: Motores Franklin S.A. de C.V.
Av. Churubusco 1600 B16
Monterrey, NL
CP 64560 MÉXICO
Tel. 81 8000 1000
NOTAS:
NOTAS:
NOTAS:
s WARNING
!
Serious or fatal electrical shock may result from failure to connect the ground terminal to the motor,
SubDrive/MonoDrive controller, metal plumbing, or other metal near the motor or cable, using wire
no smaller than motor cable wires. To minimize risk of electrical shock, disconnect power before
working on or around the SubDrive/MonoDrive system. CAPACITORS INSIDE THE SUBDRIVE/
MONODRIVE CONTROLLER CAN STILL HOLD LETHAL VOLTAGE EVEN AFTER POWER HAS
BEEN DISCONNECTED.
ALLOW 5 MINUTES FOR DANGEROUS INTERNAL VOLTAGE TO DISCHARGE BEFORE REMOVING
SUBDRIVE/MONODRIVE COVER.
Do not use motor in swimming areas.
Before Getting Started
s ATTENTION
!
This equipment should be installed by technically qualied personnel. Failure to install it in compliance
with national and local electrical codes and within Franklin Electric recommendations may result in
electrical shock or re hazard, unsatisfactory performance, or equipment failure. Installation information
is available through pump manufacturers and distributors, or directly from Franklin Electric at our
toll-free number 1-800-348-2420.
s CAUTION
!
Use SubDrive/MonoDrive only with Franklin Electric 4-inch submersible motors as specied in this
manual (see Table 2, pg. 19). Use of this unit with any other Franklin Electric motor or with motors from
other manufacturers may result in damage to both motor and electronics. In applications where water
delivery is critical, a replacement pressure sensor and/or back-up system should be readily available if
the drive fails to operate as intended.

SubDrive15/20/30, MonoDrive, MonoDriveXT NEMA 3R Owner’s Manual
De 226203101
Rev. 0
10.14
9255 Coverdale Road, Fort Wayne, IN 46809
Tel: 260.824.2900 Fax: 260.824.2909
www.franklinwater.com
Owner’s Manual
SubDrive15/20/30
MonoDrive, MonoDriveXT
NEMA 3R