538615 5 Goulds 1GD Dual Seal Grinder Pump Installation Drawing
: Pump 538615 5 Goulds 1Gd Dual Seal Grinder Pump Installation Drawing 538615_5_Goulds 1GD Dual Seal Grinder Pump Installation Drawing pdf
Open the PDF directly: View PDF
.
Page Count: 8

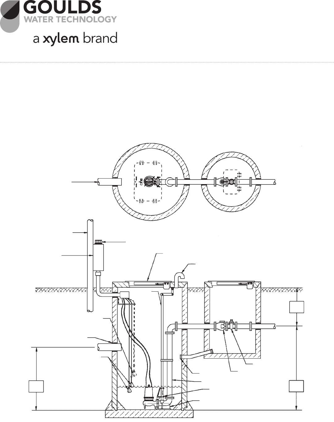
SERVICE POLE
GROUT SEAL
GUIDE
RAIL
FLOAT SWITCH
HIGH LEVEL ALARM
(OPTIONAL)
FLOAT SWITCH
GUIDE RAIL BASE
GUIDE RAIL GUIDE
DISCHARGE PIPING
TRAP
Drain
PLUG VALVE
CONTROL PANEL
INFLUENT
CHECK VALVE
(All dimensions are in inches. Do not use for construction purposes.)
ALARM LIGHT (OPTIONAL)
HINGED ACCESS DOOR
VENT
DISCHARGE
Simplex 3” AND 4” NPT DISCHARGE – Submersible Sewage Pump
TYPICAL INSTALLATION DRAWING
DRAWINGS
TID

PAGE 2
Wastewater
Goulds Water Technology
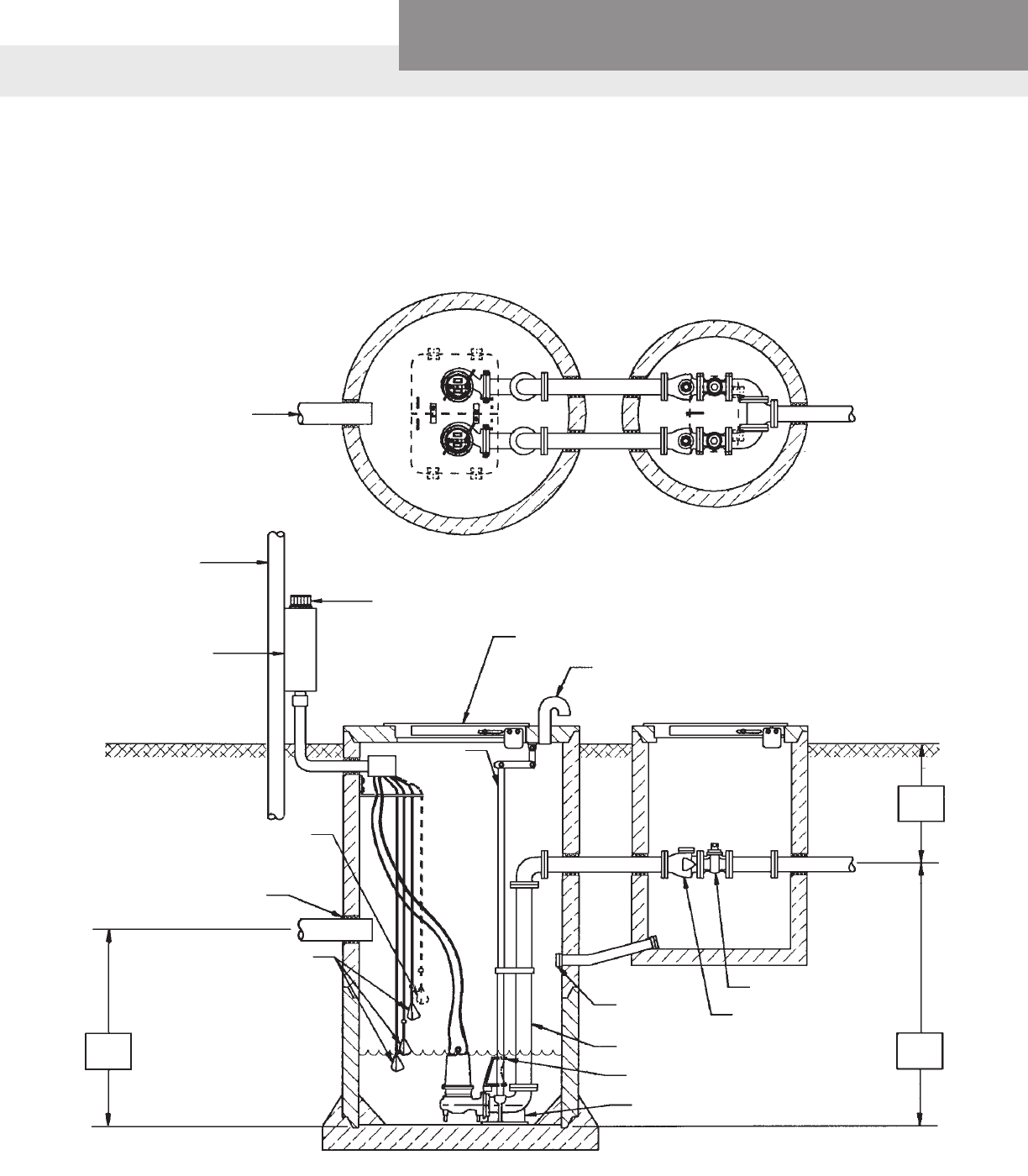
SERVICE POLE
VENT
FLOAT SWITCH
HIGH LEVEL ALARM
(OPTIONAL)
GROUT SEAL
GUIDE RAIL BASE
TRAP CHECK VALVE
PLUG VALVE
INFLUENT
HINGED ACCESS DOOR
FLOAT SWITCH
(All dimensions are in inches. Do not use for construction purposes.)
GUIDE
RAIL
GUIDE RAIL GUIDE
DISCHARGE PIPING
ALARM LIGHT (OPTIONAL)
CONTROL PANEL
DISCHARGE
Drain
Duplex 3” AND 4” NPT DISCHARGE – Submersible Sewage Pump
TYPICAL INSTALLATION DRAWING

PAGE 3
Wastewater
Goulds Water Technology
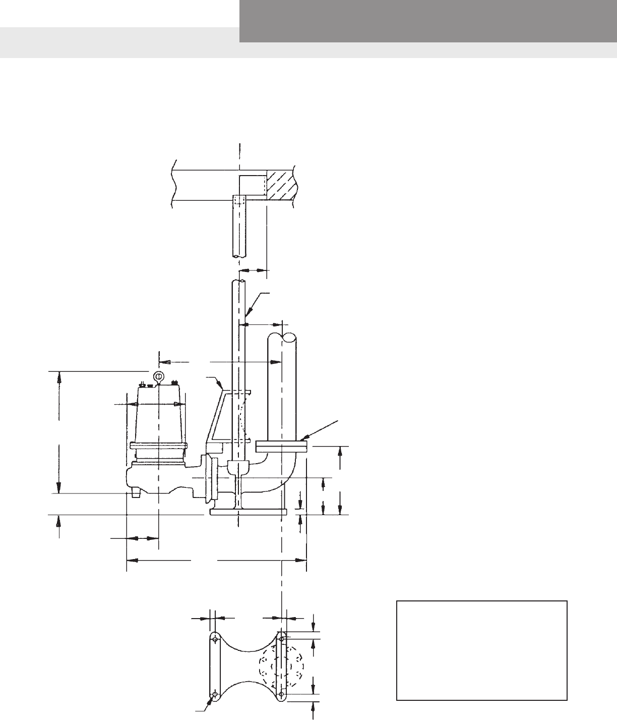
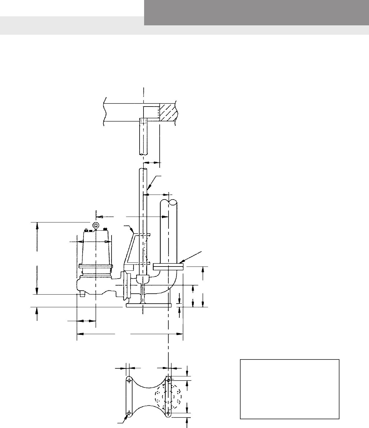
(All dimensions are in inches. Do not use for construction purposes.)
**To use catalog 1¼" Duplex Discharge Piping.
11
8¼
INTERMEDIATE WALL
BRACKET REQUIRED FOR
WET WELLS OVER 96" DEEP.
COUPLING
DISCHARGE
5¾
LIFTING CABLE
GUIDE RAILS
1¼" DIA. PIPE
QUICK
DISCONNECT
CHECK VALVE
51⁄8
31⁄16
MIN.
WALL BRACKET
TOP PUMP BRACKET
22
APPROX.
36
BOTTOM PUMP
BRACKET
BASE PLATE
VERTICAL PIPE
NIPPLES
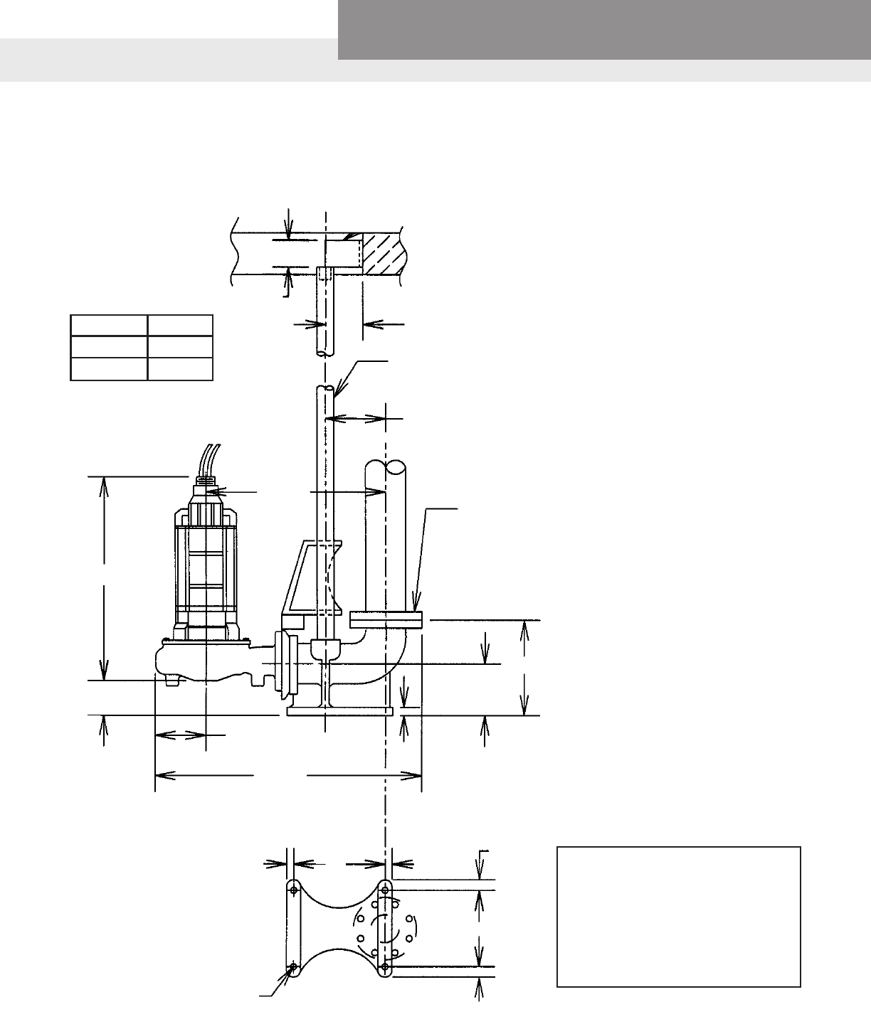
Minimum basin diameters
Simplex: 24”
Duplex: 36”
Slide rail assemblies must
use hatch/solid style covers.
1GD 1¼” DISCHARGE SLIDE RAIL (A10-12) – Submersible Grinder Pump
TYPICAL INSTALLATION DRAWING

PAGE 4
Wastewater
Goulds Water Technology
(All dimensions are in inches. Do not use for construction purposes.)
2" GUIDE PIPE
7¼
23
4" ANSI CLASS 125 FLANGE
GUIDE
24½
1113⁄16
313⁄16
6¼
357⁄8
12
7
1
13
7⁄8 DIA. – 4 HOLES 1½" TYPICAL
1" TYPICAL
11
Minimum basin diameters
Simplex: 36”
Duplex: 48”
Slide rail assemblies must
use hatch door style covers.
3SD TYPICAL INSTALLATION DRAWING

PAGE 5
Wastewater
Goulds Water Technology
(All dimensions are in inches. Do not use for construction purposes.)
25⁄8
2" GUIDE PIPE
7¼
23
4" ANSI CLASS 125 FLANGE
GUIDE
24½
1113⁄16
313⁄16
6¼
357⁄8
12
7
1
13
7⁄8 DIA. – 4 HOLES 1½" TYPICAL
1" TYPICAL
11
Minimum basin diameters
Simplex: 36”
Duplex: 48”
Must use hatch cover to
remove slide rail assemblies.
3888D4/4SD WITH A10-40 GUIDE RAIL – Submersible Sewage Pump
TYPICAL INSTALLATION DRAWING

PAGE 6
Wastewater
Goulds Water Technology
(All dimensions are in inches. Do not use for construction purposes.)
MOTOR C
210TY 37.75"
250TYS 43.13"
3"
7¾"
1"
GUIDE
12"
7"
11"
1" TYPICAL
C
25½"
4" 150 PSI
ANSI FLANGE
75⁄16"
13"
2" GUIDE PIPE
33⁄8"
7⁄8 DIA. - 4 HOLES
1½" TYPICAL
37¾"
2"
1½"
Minimum basin diameters
Simplex: 36”
Duplex: 48”
Slide rail assemblies must
use hatch door style covers.
4NS/4XD ON A10-40 GUIDE RAIL – Submersible Sewage Pump
TYPICAL INSTALLATION DRAWING

PAGE 7
Wastewater
Goulds Water Technology
WALL BRACKET
INTERMEDIATE WALL BRACKET REQUIRED
FOR WET WELLS OVER 96" DEEP.
(All dimensions are in inches. Do not use for construction purposes.)
**To use Catalog 2" Duplex Discharge Piping
51⁄8
31⁄16
MIN.
21
MAX.
BASE PLATE
BOTTOM PUMP
GUIDE BRACKET
36
CHECK VALVE
QUICK
DISCONNECT
DISCHARGE
COUPLING
TOP PUMP
GUIDE BRACKET
GUIDE RAILS
LIFTING CABLE
8¼
REF
13
6¼
MAX.
Minimum basin diameters
Simplex: 24”
Duplex: 36”
Slide rail assemblies must use
hatch or solid style covers.
2ED/2WD A10-20 SLIDE RAIL – Submersible Sewage Pump
TYPICAL INSTALLATION DRAWING

Goulds is a registered trademark of Goulds Pumps, Inc. and is used under license.
© 2012 Xylem Inc. TID May, 2011
Xylem Inc.
2881 East Bayard Street Ext., Suite A, Seneca Falls, NY 13148
Phone: (866) 325-4210 Fax: (888) 322-5877
www.xyleminc.com/brands/gouldswatertechnology
1) The tissue in plants that brings water upward from the roots;
2) a leading global water technology company.
We’re 12,500 people unified in a common purpose: creating innovative solutions
to meet our world’s water needs. Developing new technologies that will improve
the way water is used, conserved, and re-used in the future is central to our work.
We move, treat, analyze, and return water to the environment, and we help people
use water efficiently, in their homes, buildings, factories and farms. In more than
150 countries, we have strong, long-standing relationships with customers who
know us for our powerful combination of leading product brands and applications
expertise, backed by a legacy of innovation.
For more information on how Xylem can help you, go to www.xyleminc.com
Xylem