538690 3 Goulds Jet Pump Repair Parts
542442 3 Goulds Jet Pump Repair Parts 542442_3_Goulds Jet Pump Repair Parts
542444 3 Goulds Jet Pump Repair Parts 542444_3_Goulds Jet Pump Repair Parts
542545 3 Goulds Jet Pump Repair Parts 542545_3_Goulds Jet Pump Repair Parts
538688 3 Goulds Jet Pump Repair Parts 538688_3_Goulds Jet Pump Repair Parts 538688_3_Goulds Jet Pump Repair Parts pdf pumpproducts
538689 3 Goulds Jet Pump Repair Parts 538689_3_Goulds Jet Pump Repair Parts 538689_3_Goulds Jet Pump Repair Parts pdf pumpproducts
: Pump 538690 3 Goulds Jet Pump Repair Parts 538690_3_Goulds Jet Pump Repair Parts pdf
Open the PDF directly: View PDF
.
Page Count: 12

Jet Pump
REPAIR PARTS
REPAIR PARTS
RJETPARTS R1

PAGE 2
Residential Water Systems
Goulds Water Technology
JETS
JRS ........................................................................................................................................................................................... 3
JRD .......................................................................................................................................................................................... 4
JRSG ............................................................................................................................................... moved to obsolete book
J+ and JS+ .............................................................................................................................................................................. 5
JB .................................................................................................................................................... moved to obsolete book
HSJ ........................................................................................................................................................................................... 6
VJ ............................................................................................................................................................................................. 7
SJ ............................................................................................................................................................................................. 8
GT Irri-Gator™ ........................................................................................................................................................................ 9
BF03S ....................................................................................................................................................................................10
The 10K2 has been replaced in production and as a repair part by the 10K10. The 10K10, John Crane Type 6,
is a superior seal with a carbon rotary face, a ceramic stationary seat and BUNA N elastomers.

PAGE 3
Residential Water Systems
Goulds Water Technology
JRS5LT
1
23
4
567
8
910
4
11
12 13
14
15
16
17
18
19
20
3
20 21
21
22
23
24
MODEL JRS
Item
No. Part Description Material Repair Part No.
JRS5 JRS5H JRS5LT JRS7 JRS10
1 Drain plug ¼" NPT Steel 6K2
2 Vent plug 1⁄8" NPT Steel 6K1
3 Elbow connector – tubing Polypropylene 6K94
4 Casing Cast iron 1K342 1K382 1K342
5 Nozzle Delrin®AN018 AN020 AN018
6 Venturi tube Lexan®AD3330 AD3325 AD3330 AD3336 AD3339
7 Separator plate seal ring BUNA-N 5K323
8 Separator plate Polypropylene 5K253
9 Diffuser (guidevane) Lexan®3K64 3K65
10 Impeller Noryl®2K900 2K901 2K902
11 O-ring BUNA 5K230
12 Mechanical seal – Rotary BUNA 10K10
13 Mechanical seal – Stationary Ceramic
14 Seal housing Amodel®1K366
15 Connector with locknut Steel 6K24
16 Pressure switch NA AS4
17 Tubing – pressure switch Polypropylene 6K92 6K101 6K108
18 Motor Stainless steel shaft SFJ04860 SFJ05860 SFJ06860
19 Hex cap screw Steel 13K80
20 Grommet – base BUNA 4K405
21 Base – JRS5, JRS7, JRS10 (off tank) Steel 4K399 4K449 4K399
Tank base – JRS5LT (on tank model)
22 Discharge gland washers (pkg 2) N-8090 – 5K10 –
23 Discharge gland packing BUNA – 5K8 –
24 Dis. gland nut assembly (includes 22 & 23) Brass – 4K12 –

PAGE 4
Residential Water Systems
Goulds Water Technology
JRD with Shallow Well Adapter
JRD5LT
12
34
567
8
4
26
28 27
10
10
11 12 13
14 15 18
9
21
20 19
23
17
16
22
24
25
25
23
3
MODEL JRD
Item
No. Part Description Material Repair Part No.
JRD5 JRD5LT JRD7 JRD10
1 Pipe plug ½" NPT Steel 6K68
2 Hex cap screw Steel 13K1
3 Shallow well adapter Cast iron 4K62
4 Pipe plug 1⁄8" NPT Steel 6K1
5 Gasket BUNA – FDA/NSF 5K108
6 Nozzle Delrin® AN018
7 Venturi tube Lexan® AD3731 AD3536 AD3538
8 Drain plug ¼" NPT Steel 6K2
9 Elbow connector – tubing Polypropylene 6K94
10 Casing Cast iron 1K416 1K417 1K416
11 Separator plate seal ring BUNA 5K323
12 Separator plate Polypropylene 5K253
13 Diffuser (guide vane) Lexan® 3K64 3K65
14 Impeller Noryl® 2K900 2K901 2K902
15 O-ring BUNA 5K230
16 Mechanical seal – rotary BUNA 10K10
17 Mechanical seal – stationary Ceramic
18 Seal housing Amodel® 1K366
19 Connector w/locknut Steel 6K24
20 Pressure switch NA AS4
21 Tubing – pressure switch Polypropylene 6K92 6K101 6K108
22 Motor Stainless steel shaft SFJ04860 SFJ05860 SFJ06860
23 Hex cap screw Steel 13K80
24 Grommet – base BUNA 4K405
25 Base – JRD5, JRD7, JRD10 (off tank) Steel 4K399 4K449 4K399
Tank base – JRD5LT (on tank)
26 Discharge gland washers (pkg 2) N-8090 – 5K10 –
27 Discharge gland packing BUNA – 5K8 –
28 Dis. gland nut assembly (includes 26 & 27) Brass – 4K12 –

PAGE 5
Residential Water Systems
Goulds Water Technology
8
8
310
5
12
11
14
27 17
16
15
625
24
A00571C
8
22
21
23
28
26
20
13
9
19
18
JS+
Item Part Description Material J+ Series Repair Part No. JS+ Series Repair Part No.
No. J5 J5H J7 J10 J15 J5S J5SH J7S J10S J15S
1 Pipe plug – 1⁄2" NPT Steel, plated 6K68 –
2 Hex cap screw Steel 13K1 –
3 Pipe plug – 1⁄8" NPT Steel, plated 6K1 6K1
4 Shallow well adapter Cast iron 4K62 –
5 Nozzle Delrin® AN017 AN019 ANO18 AN022 AN017 AN019 AN018 AN022
6 Venturi tube Lexan® on model JS+ AD3731 AD3528 AD3536 AD3538 AD3542 AD3332 AD3328 AD3336 AD3339 AD3342
Durez® on model J+
7 Gasket BUNA - FDA/NSF 5K108 –
8 Drain plug – 1⁄4" NPT Steel, plated 6K2 6K2
9 Straight connector Polypropylene 6K100 6K100
10 Casing Cast iron 1K311 (59395) 1K333 (59240)
11 Seal ring BUNA - FDA/NSF 5K6 ① 5K6 ①
12 Diaphragm BUNA - FDA/NSF 5K162 5K162
13 Tubing Polypropylene 6K92 6K93 6K101 6K102 6K92 6K93 6K101 6K102
14 Diffuser (guidevane) Lexan® 10% G.F. 3K75 3K67 3K68 3K75 3K67 3K68
15 Impeller Noryl® 20% G.F. 2K4 2K60 2K61 2K706 2K4 2K60 2K61 2K706
16 Mechanical seal, rotary BUNA 10K10 10K10
17 Mechanical seal, stationary Ceramic
18 Motor adapter Cast iron 1K310 (59394) 1K310 (59394)
19 Casing bolts Steel 13K102 13K102
20 Elbow connector Polypropylene 6K94 6K94
21 Motor adapter bolts Steel 13K69 13K69
22 Motor Stainless steel shaft J04853R J05853R J06853R J07858R J04853R J05853R J06853R J07858R
23 Pressure switch NA AS4 AS4
24 Pump foot Steel 4K408 4K408
Pump Base Assembly
24A with Rubber Channel Steel — 15K60 — 15K60
Replaces foot 4K408
25 Pump foot bolt Steel 13K252 13K252
26 Switch con. with locknut Steel 6K24 6K24
27 Fillister head machine screw Stainless steel 13K4 13K4
28 Deector BUNA 5K7 5K7
NOT SHOWN:
Casing J05LT for tank mounted models 1K58
Gland Nut Assembly for J05LT 4K12
Bottom Plug for 1K58 6K59
① Use 5K6 with any bolt-in diffuser.
Use 5K264 with snap-in diffuser (no bolts).
15K60 effective 9-05.
MODEL J+ and JS+
J+
25
24
8
28
2
26
23
20
13
22
21
9
19
18
17
16
15
14
12
11
10
3
8
7
3
4
1
6
5
27
24A

PAGE 6
Residential Water Systems
Goulds Water Technology
15K60
6K68 5K108 6K2 1K201 4K329 4K327 5K178 13KGRP
13K212
1K2065K147 4K376 13K252
13K1 13K43
13K81
4K62
6K1
6K54
6K36
AA8-7
6K1
5K178
2KGRP 4K328 1K204 13K212
4KGRP
2KGRP
AV22
AG5
6K45
6K94 6K102
AS4 & AS10
6K24
6K94
10KGRP
4K379
5K7
NOZZLE
GROUP
DIFFUSER
GROUP
6K25
Part No. Part Name Pattern No.
AG2 Pressure gauge – 200 PSI maximum
AG5 Pressure gauge – 100 PSI maximum
AS4 Pressure switch – ¾, 1, 1½ HP rated
AS10 Pressure switch – 2 HP rated
AV22 Pressure control valve
AA8-7 Air volume control valve – used with
galvanized tanks
HP Model Order No.
¾ HSJ07N, 2 stage J05853R
1 HSJ10N, 2 stage J06853R
1½ HSJ15N, 3 stage J07858R
2 HSJ20N, 3 stage J08854R
HP Model Nozzle Group Diffuser Group
¾ HSJ07N AN012 AD3432
1 HSJ10N AN012 AD3437
1½ HSJ15N AN012 AD3439
2 HSJ20N AN012 AD3448
4K312 Adapter – shallow well (2 bolt)
5K173 Gasket – shallow well adapter (2 bolt)
13K1 Bolt – shallow well adapter (2 bolt)
① Casing for 2 bolt shallow well adapter not available. Order 1K261
kit which includes pump casing, 4 bolt adapter, gasket and bolts.
② Includes 4K379, 13K43 and 13K212.
MOTOR CODES
SHALLOW WELL FITTINGS PACKAGES
2 BOLT SHALLOW WELL ADAPTER – OBSOLETE
(NOT AVAILABLE)
Part No. Part Name Pattern No.
1K201 Casing (4 bolt S.W.A.) 59160
1K204 Intermediate stage 59157
1K206 Motor adapter 59156
2K289 Impeller – ¾ and 1½ HP HSJ models
2K290 Impeller – 1 and 2 HP HSJ models
4K62 Adapter – shallow well (4 bolt)
4K308 Foot - old style (cast)
4K327 Wear ring
4K328 Sleeve 55548
4K329 Coverplate – 1 per stage
4K331 Shaft extension – 2 stage, ¾ and 1 HP
4K332 Shaft extension – 3 stage, 1½ and 2 HP
4K376 Foot - (stamped)
15K60 Pump Base Assembly with Rubber Channel
Replaces foot 4K408
4K379 Retainer – shaft sleeve assembly
5K7 Deector
5K147 O-ring – motor adapter bolts
5K108 Gasket – S.W. adapter (4 bolt)
5K178 O-ring – casing and intermediate stage
6K1 Pipe plug 1⁄8" NPT
6K2 Pipe plug ¼" NPT
6K24 Switch connector with nut
6K25 Comp.tting1⁄8" NPT x ¼" tubing
6K36 Comp.ttingelbow1⁄8" NPT x ¼" tubing
6K45 Reducing bushing ¼" x 1" NPT
6K68 Pipe plug ½" NPT
6K94 Elbowtting(tubing)
6K102 Tubing
10K10 Shaft seal assembly
13K43 Impeller bolt
13K71 Bolt – foot to adapter (old foot)
13K81 Bolt – adapter to motor
13K1 Bolt – S.W. adapter (4 bolt)
13K212 Washer – impeller and adapter
13K213 Bolt – casing to adapter, 2 stage models
13K214 Bolt – casing to adapter, 3 stage models
13K252 Bolt – foot to adapter
②
①
②
MODEL HSJ

PAGE 7
Residential Water Systems
Goulds Water Technology
4K320
1K143
5K157
10K2
2K GROUP
3K56
5K6
13K102
1K142
13K71
5K7
6K2
6K2
AS4
6K100
6K102
6K94
6K24
6K19
AG5
13K4
AV21
MOTOR CODES
VJ05J04853
1
/
2
HP
3
/
4
HPVJ07J05853
VJ10J06853 1 HP
Part Part Name Pattern
No. No.
1K142 Casing 59202
1K143 Motor adapter 59014
2K61 Impeller ¾ and 1 HP
2K204 Impeller ½ HP
3K56 Guidevane – ½, ¾, 1 HP
4K230 Drip cover – 48FR
(A.O. Smith motor)
5K6 Seal ring – guidevane
5K7 Deector
5K157 O-ring
6K2 Plug ¼ NPT
6K19 Reducing bushing ¾" x ¼" (for AG5)
6K24 Switch connector with nut
6K94 Elbowtting(tubing)
6K100 Straighttting(tubing)
6K102 Tubing
10K10 Shaft seal assembly
13K4 Screw – guidevane
13K71 Bolt – motor adapter to motor
13K102 Bolt – casing to motor adapter
AG5 Pressure gauge
AS4 Pressure switch
AV21 Pressure control valve 54382
2K GROUP
MODEL VJ

PAGE 8
Residential Water Systems
Goulds Water Technology
4K230
5K7
6K2
1K205
5K147
13K212
13K81
13K212
13K43
5K178
1K204
4K327
13KGR
6K1
AS4
and
AS10
6K100
6K10
6K94
AG5
and
AG2
AV21
10KGRP
4K379
4K329
2KGR
4KGR
4K328
4K329
2KGR
5K178
4K327
1K202
6K24
Part Part Name Pattern
No. No.
1K202 Casing – twin pipe system and packer 59159
1K203 Casing – packer system (OBSOLETE)
Use 1K202
1K204 Intermediate stage 59157
1K205 Motor adapter 59156
2K289 Impeller – ¾ and 1½ HP models
2K290 Impeller – 1 and 2 HP models
4K230 Drip cover
4K327 Wear ring
4K328 Sleeve
4K329 Coverplate
4K379 Retainer – shaft seal assembly
①4K331 Shaft extension – 2 stage, ¾ and 1 HP models
①4K332 Shaft extension – 3 stage, 1½ and 2 HP models
②4K375 Retaining ring (OBSOLETE)
5K7 Deector
5K147 O-ring – motor adapter bolts
5K178 O-ring – casing and intermediate stage
6K1 Pipe plug 1⁄8" NPT
6K2 Pipe plug ¼" NPT
6K19 Reducing bushing ¼" x ¾" NPT
6K24 Switch connector with nut
6K94 Elbowtting(tubing)
6K100 Straighttting(tubing)
6K102 Tubing
10K10 Shaft seal assembly
13K43 Impeller bolt
13K81 Bolt – adapter to motor
13K212 Washer – impeller and adapter
13K213 Bolt – casing to adapter ¾ and 1 HP models
13K214 Bolt – casing to adapter 1½ and 2 HP models
②13K250 Impeller washer (OBSOLETE)
AG2 Pressure gauge – 200 PSI max.
AG5 Pressure gauge – 100 PSI max.
AS4 Pressure switch – ¾, 1 HP, 1½ HP rated
AS10 Pressure switch – 2 HP rated
AV21 Pressure control valve
AA8-7 Air volume control valve (not shown)
① Includes 4K379, 13K43 and 13K212.
② Models built December 1988 through February 1991 used a
retaining ring. Replace with 4K331 or 4K332 shaft extension as-
sembly.
HP Model Order No.
¾ SJ07, SJ07PK JO5853R
1 SJ10, SJ10PK JO6853R
1½ SJ15, SJ15PK JO7858R
2 SJ20, SJ20PK JO8854R
MOTOR CODES
MODEL SJ

PAGE 9
Residential Water Systems
Goulds Water Technology
Motor Codes
HP 1Ø – ODP 3Ø – ODP 1Ø – TEFC 3Ø – TEFC
.75 J05853R C05873 C06821 C06876
1.0 J06853R C06873 C07821 C07876
1.5 J07858R C07878 C08821 C08876
2.0 J08854R C08874 C09821 C09876
3.0 J09853 C09874 C09821 C09876
Item
Part No.
No. Description Material GT07/ GT10/ GT15/ GT20/ GT30/
GT073 GT103 GT153 GT203 GT303
1 ¼" NPT Pipe Plug Plated Steel 6K2
2 Casing Cast Iron 1K324
3 Guidevane Seal Ring BUNA 5K6
4 Diaphragm Neoprene 5K256
5 Fillister Head Stainless Steel 13K4 13K4 13K2 13K2 13K2
Machine Screw
6 Guidevane Lexan® 10% G.F. 3K72 3K71 3K70 3K70 3K69
7 Impeller Noryl® 20% G.F. 2K715 2K716 2K714 2K713 2K712
8 Mechanical Seal Carbon/Ceramic/BUNA 10K10
9A Pump Foot (old style) Steel 4K408
Pump Base Assembly
9B with Rubber Channel 15K60 (effective 9-05)
Replaces foot 4K408
Tall Pump Base
9C with Rubber Channel Steel 15K86
Replaces 15K60 or 4K408
10 Pump Foot Bolt Steel 13K252
use with 4K408 only
11 Motor Adapter Cast Iron 1K310
12 Casing Bolt Steel 13K102 (4 required)
13 Motor Adapter Bolt Steel 13K69
14 Deector BUNA 5K7
NOTE:
Many TEFC motors have a 1.0 Service Factor, while ODP motors have
NEMA Service Factors between 1.15 and 1.6. Therefore, the motor HP
will be higher for TEFC models than ODP models. Ex. A GT15 has a 1.5
HP, ODP motor with a 1.3 S.F., the GT153 will require a 2 HP TEFC mo-
tor which has a 1.0 S.F. The Price Book shows the actual HP motor used
on each model while this chart shows only motor order numbers.
MODEL GT IRRI-GATOR
3
2
1
8
13
10
1
11
9A
9C
9B
7
6
5
4
12
14

PAGE 10
Residential Water Systems
Goulds Water Technology
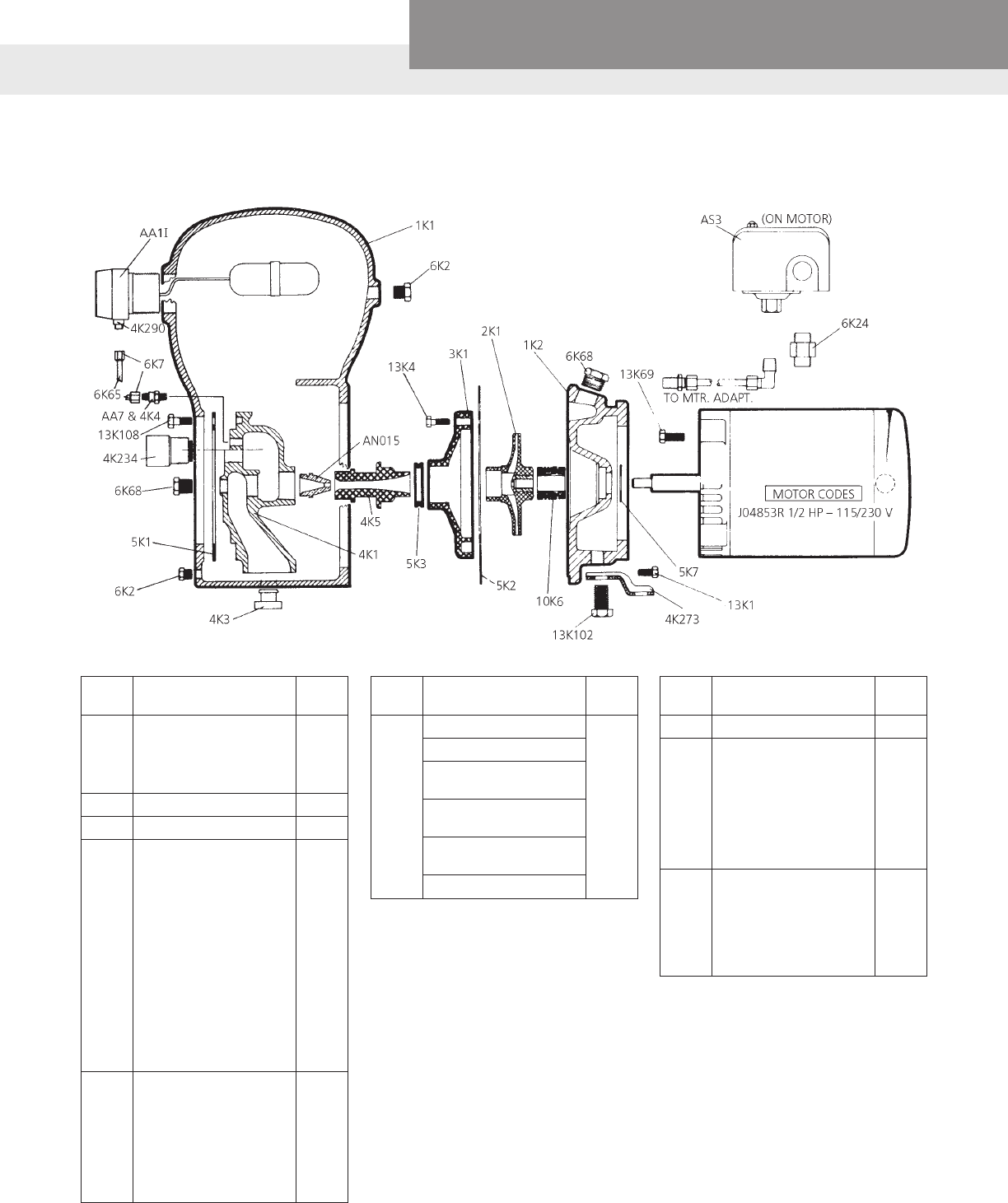
MODEL BF03S
Part
No. Part Name Pattern
No.
1K1 Casing with plug and 2
grommets
52125
1K2 Motor adapter with plug
and foot
52932
2K1 Impeller
3K1 Guidevane
4K1 Backplate 52126
4K2 Strainer
(with retaining wire)
4K3 Rubber grommet
4K4 Air valve core
(tsinsideAA7)
4K5 Diffuser
4K63 Foot
4K234 Check valve
4K290
②
Valve assembly
(tsinsideAA1)
5K1 Gasket – backplate
5K2 Gasket – casing
5K3 Seal ring – guidevane
5K7 Deector
5K175 O-ring connect A.V.C.
tubing to AA7
Part
No. Part Name Pattern
No.
6K1 Plug 1⁄8 NPT (old style)
6K2 Plug ¼ NPT
6K7 Compression nut – A.V.C.
tube (use with 5K175)
6K24 Switch connector
with nut
6K65 Tubing – A.V.C.
(3⁄16" O.D. x 9¾" long)
6K68 Plug ½ NPT
Part
No. Part Name Pattern
No.
10K2 Shaft seal assembly
13K1 Bolt – adapter to casing
13K2 Bolt – guidevane
13K71 Bolt – motor to adapter
13102 Bolt – foot to adapter
13K108 Bolt – backplate to
casing
AA1 Air volume control
(includes 4K290)
AA7 Air valve (includes 4K4)
AN015 Nozzle
AS3 Pressure switch
NOTE: 4K2 strainer not required on units
with nozzle cleanout plug.
① 6K1 casing drain plug changed to 6K2 on
1981 and later models.
② Valve assembly 4K290 used to repair
USG (black) only. 4K7 valve assembly no
longer available.

PAGE 11
Residential Water Systems
Goulds Water Technology
NOTES

Goulds is a registered trademark of Goulds Pumps, Inc. and is used under license. Irri-gator is a trade-
mark of Xylem Inc. or one of its subsidiaries. Noryl and Lexan are registered trademarks of GE Plastic.
Amodel is a registered trademark of Solvay. Delrin is a registered trademark of DuPont. Durez is a
registered trademark of Durez Corporation, a division of Sumitomo Bakelite Company, Ltd.
© 2015 Xylem Inc. RJETPARTS R1 October 2015
Xylem Inc.
2881 East Bayard Street Ext., Suite A
Seneca Falls, NY 13148
Phone: (800) 453-6777
Fax: (888) 322-5877
www.gouldswatertechnology.com
1) The tissue in plants that brings water upward from the roots;
2) a leading global water technology company.
We’reaglobalteamuniedinacommonpurpose:creatinginnovativesolutionsto
meet our world’s water needs. Developing new technologies that will improve the
way water is used, conserved, and re-used in the future is central to our work. We
move, treat, analyze, and return water to the environment, and we help people use
waterefciently,intheirhomes,buildings,factoriesandfarms.Inmorethan150
countries, we have strong, long-standing relationships with customers who know us
for our powerful combination of leading product brands and applications expertise,
backed by a legacy of innovation.
For more information on how Xylem can help you, go to www.xyleminc.com
Xylem