539161 2 Goulds Aquavar ABII Product Overview
539162 2 Goulds Aquavar Abii Product Overview 539162_2_Goulds Aquavar ABII Product Overview
: Pump 539161 2 Goulds Aquavar Abii Product Overview 539161_2_Goulds Aquavar ABII Product Overview pdf
Open the PDF directly: View PDF
.
Page Count: 4

FEATURES
Input Power①: 196-264 Volts, single phase 2-wire, grounded
Output Power: Up to 230V three phase (based on input voltage).
Motor rated for 208-230 V.
Input Controls: Press and hold pressure increase/decrease buttons.
Minimum speed and motor overload switch.
Signal Light: Power on, pump running, pump stopped, faults/errors.
Electrical Efciency: Over 95%
Protection Against: Short circuit, over/under voltage, motor overload, dead
heading, suction loss, sensor fault, bound pump, over/under temperature.
Ambient Temperature: 14º F to 122º F
Maximum Humidity: 95% at 122º F, non-condensing
Enclosure: NEMA 3R, IP 22 (Rain-tight)
Mounting: Mount vertically, screws included
Cooling: Convection with heat sink and fan
Transducer: 0.5 - 4.5 VDC with 5 VDC power supply, 80" 3-wire cable.
① Low input voltage will affect motor operation.
Aquavar ABII+ 3AB2, 5AB2
VARIABLE SPEED CONSTANT PRESSURE PUMP CONTROLLERS
TECHNICAL BROCHURE
B3/5AB2 R3

PAGE 2
Residential & Commercial Water Systems
CentriPro
CU
S
®Tested to UL 778, 508C and CSA 22.2 108-M89, 14-95
Standards By Canadian Standards Association File #LR38549
PRODUCT OVERVIEW
Think of it as “Cruise Control” for your pump.
The Aquavar ABII+ pump controller provides an
economical answer for municipal and private water
systems with low water pressure. Both domestic and
light commercial above ground boosters can benet.
As water use increases, the controller changes pump
speed to maintain pressure. Large supply tanks are
eliminated and up to 50% of the energy required by a
full speed pump is saved.
CONTROLLER MODEL NUMBERS AND
AMPERAGE / HP RANGES
• 3AB2 – 10.0 maximum amps, 3 HP, 230V, 3Ø Motors
• 5AB2 – 16.6 maximum amps, 5 HP, 230V, 3Ø Motors
SPECIFICATIONS
Controller Temperature Range:
• Minimum Ambient Temperature: 14º F (-10º C)
• Maximum Ambient Temperature: 122º F (50º C)
Input Voltage: 196 - 264 Volts, 1Ø, 2-Wire Grounded
Output Voltage: Up to 230V, 3Ø based on input
voltage
Enclosure Dimensions:
• Height: 18.6”
• Width: 9.9”
• Depth: 5.3”
Packaged Dimensions:
• Height: 21”
• Width: 13”
• Depth: 8”
3AB2 Specications:
• Amperage / HP Range: 10.0A / 3 HP maximum
• Unit Weight: 21 lbs.
• Packaged Weight: 23 lbs.
• Pressure Set Point: adjustable from 20 - 85 PSI with
100 PSI transducer
• Includes: 100 PSI Transducer, 80” Transducer
Cable, Mounting Screws and Ground Clamp
5AB2 Specications:
• Amperage / HP Range: 16.6A / 5 HP maximum
• Unit Weight: 22 lbs.
• Packaged Weight: 24 lbs.
• Pressure Set Point: adjustable from 20 - 100 PSI
with 200 PSI transducer
• Includes: 200 PSI Transducer, 80” Transducer
Cable, Mounting Screws and Ground Clamp
Typical home water pressure
drops when demand is high.
Pressure
Pressure
The ABII makes up the pressure
difference at peak demand for
constant home water pressure.
The ABII+ Advantage
++
Flow0+Flow0+
Before After
3AB2 AND 5AB2 PRESSURE RANGE DATA
3AB2 5AB2
Transducer Minimum Maximum Minimum Maximum
PSI PSI PSI PSI
100 PSI ➀ 20 85 — —
200 PSI ➁ 40 170 20 100
➀ Standard on 3AB2 ➁ Standard on 5AB2
• Maximum system pressure for 3AB2 with 100 PSI
Transducer is 85 PSI
• Maximum system pressure for 5AB2 with 100 PSI
Transducer is 100 PSI
• System Pressure is Suction (Incoming) Pressure plus
Pump "boost" Pressure. A pump that produces 50
PSI at 10 GPM with 30 PSI of suction pressure will
provide 10 GPM at 80 PSI (50 + 30) System Pressure.
Complete Systems: pump with pre-wired controller,
transducer with cable and tank tee are available. See
Aquavar ABII and ABII+ Systems Bulletin, BAQUABII+
for data and variable speed curves.
AGENCY LISTINGS

PAGE 3
Residential & Commercial Water Systems
CentriPro
5.3
3.3
1.9
1.5
2.7
¾ & 1"
COMBINATION
KNOCKOUTS
BOTH SIDES
½" x 1"
9.9
18.6 15.6 15.2
1.6
1.2 7.50
2X (.28 DIA.)
5.3
1.2
2.4
2.7
1.7 6.5
½" KNOCKOUT
(TRANSDUCER)
½" x 1" KNOCKOUTS
.28 DIA.
.28 DIA.
.50 DIA.
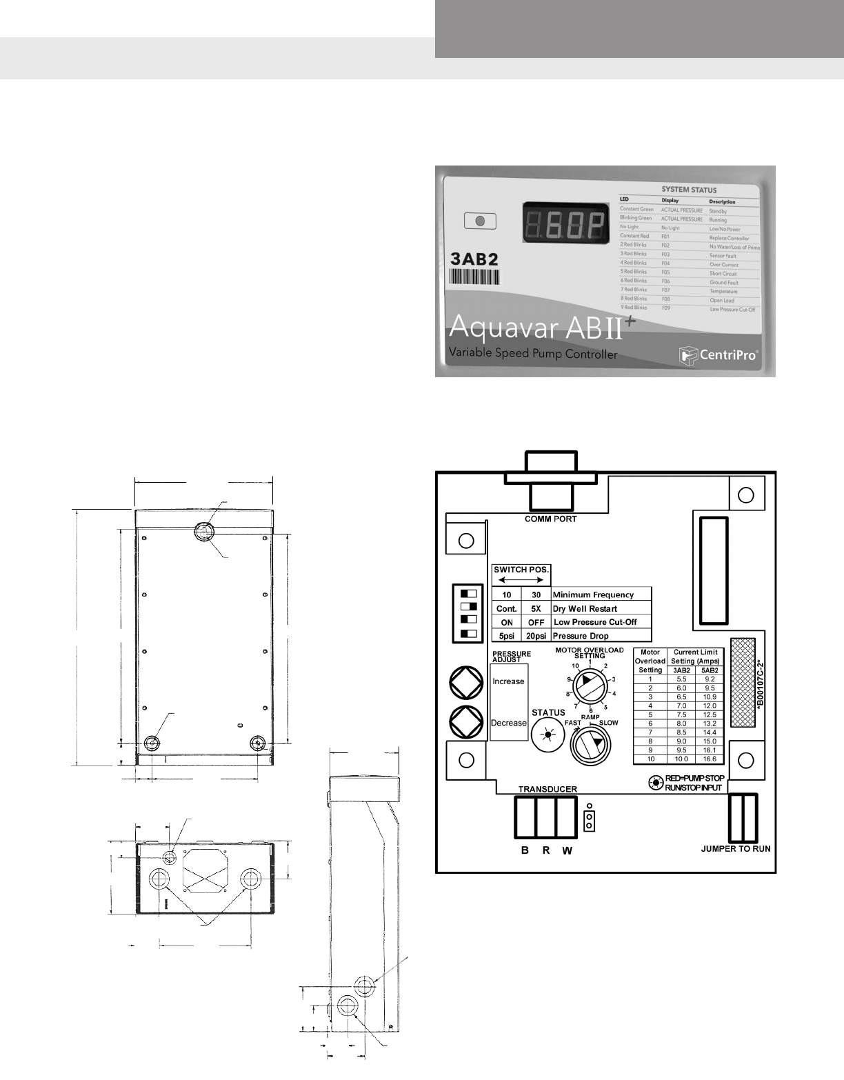
NEW FEATURES
• LED numerical and text display clearly indicates
actual system pressure, output frequency, current
draw and error log
• Dual system set points for advanced system
application.
• Programmable output relay can be congured to
run optional accessories such as a chlorinator, or
link to a home monitoring system.
WITH ADDED FEATURES THE ABII+ PROVIDES CONSTANT PRESSURE CONTROL PLUS
MORE FOR THE 3 HP AND 5 HP MOTOR SIZES
3AB2 UIBDIMENSIONS - 3AB2 AND 5AB2

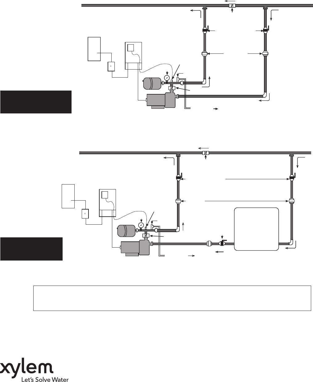
Figure 1
System Layout
for municipal hook-up
Home SupplyWater Main
Check Valve
Isolation Valves
Unions
Check Valve
To Drain
Relief
Valve
Gauge
Tank
ABII+
Controller
Circuit
Breaker
Disconnect Transducer
Motor/Pump
Home Supply Well Supply
Check Valve
Isolation Valves
Unions
Check Valve
To Drain
Relief
Valve
Gauge
Tank
ABII+
Controller
Circuit
Breaker
Disconnect
Atmospheric
Storage Tank
Transducer
Motor/Pump
Isolation
Valve
Figure 2
System Layout for
supply tank
TYPICAL SYSTEM INSTALLATIONS
➀ Installing the check valve on the discharge side of pump will allow faster turn off at no ow.
Note: Fittings and valves are not included with ABII and ABII+ controllers.
➀
➀
Xylem Inc.
2881 East Bayard Street Ext., Suite A
Seneca Falls, NY 13148
Phone: (866) 325-4210
Fax: (888) 322-5877
www.centripro.com
CentriPro is a trademark of Xylem Inc. or one of its subsidiaries.
© 2015 Xylem Inc. B3/5AB2 R3 February 2015