540698 4 Goulds 3656 S Group Repair Parts
539999 4 Goulds 3656 S-Group Repair Parts 539999_4_Goulds 3656 S-Group Repair Parts
541166 4 Goulds 3656 S-Group Repair Parts 541166_4_Goulds 3656 S-Group Repair Parts
541355 4 Goulds 3656 S-Group Repair Parts 541355_4_Goulds 3656 S-Group Repair Parts
540756 4 Goulds 3656 S-Group Repair Parts 540756_4_Goulds 3656 S-Group Repair Parts 540756_4_Goulds 3656 S-Group Repair Parts pdf pumpproducts
541300 4 Goulds 3656 S-Group Repair Parts 541300_4_Goulds 3656 S-Group Repair Parts 541300_4_Goulds 3656 S-Group Repair Parts pdf pumpproducts
: Pump 540698 4 Goulds 3656 S-Group Repair Parts 540698_4_Goulds 3656 S-Group Repair Parts pdf
Open the PDF directly: View PDF
.
Page Count: 12

3656/3756
S, M & L-Group
REPAIR PARTS
REPAIR PARTS
R36/3756

NOTE:
Check pump and motor nameplates before ordering impellers. Select proper part by determining pump
size, material, motor type and HP. Pump size 11⁄2 x 2–8 after October 1987 will have nameplate index – 1
(19; 5BF11135-1, with 63⁄4" impeller) indicating new impeller sizes, consult curves with price sheets. Prior
to October 1987, order old style impeller from list on back. Consult factory when ordering repair parts for
pumps having a factory order number as the index number.
▼
All bronze models produced after December, 1987 have cast iron motor adapters and bronze seal
housings. When ordering motor adapters for repairs, order “K” number listed by pump size, construction
and motor frame size. These motor adapter assemblies are interchangeable with old style one piece adapter.
11
1572
83 Iron Option
10
12
13
9
6
4
3 Bronze Option
▼
Mechanical Seal Arrangement
Packed Box Arrangement
140JP – 180JP & 210 TCZ
(west coast fit)
15 16
14 10
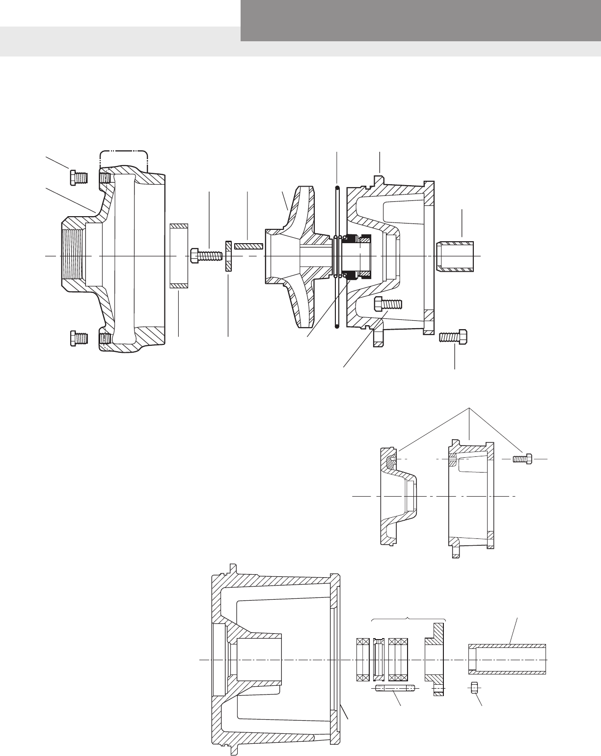
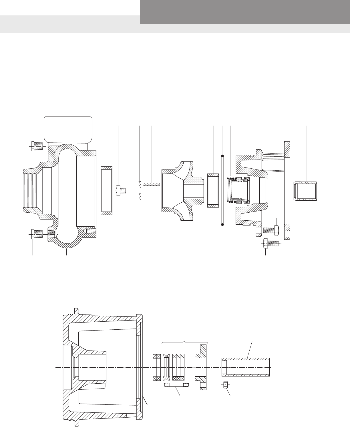
PUMP END PARTS FOR CLOSE-COUPLED OR FRAME MOUNTED CONFIGURATION
3656/3756 S-Group
Note: For S-Group power frame individual parts see S-Group Power Frame repair parts page, RSPFRAME.
3
PAGE 2
Residential Water Systems
Goulds Water Technology

Repair Part No.
22BF 9BF 3AI/BF/AB 3AIH/BFH/ABH 5AI/BF/AB 4AI/BF/AB 6AI/BF/AB
1 x 2–7 1 x 2–8 1½ x 2–6 1½ x 2–6H 1½ x 2–8 2½ x 3–7 3 x 4–7
1 Casing Cast Iron 1K365 1K612 1K98 1K102 1K100 1K128
Bronze 1K99 1K103 1K101 1K129
OLD* NEW
2K124 (4.75) 2K154 (5.62) 2K344 (5.75) 2K741 (4.12) 2K1120 (7.06) 2K233 (4.69)
2K122 (5.12) 2K152 (5.94) 2K768 (6.12) 2K740 (4.75) 2K1111 (6.88) 2K232 (5.12)
2K120 (5.62) 2K343 (6.25) 2K739 (4.94) 2K1112 (6.56) 2K230 (5.50)
2K118 (5.94) 2K342 (6.75) 2K738 (5.25) 2K1113 (6.00) 2K229 (6.38)
Cast iron 2K341 (7.00) 2K737 (5.44) 2K1114 (5.69) 2K324 (7.06)
2K340 (7.62) 2K736 (5.62) 2K1115 (5.44)
2K339 (7.75) 2K735 (5.88) 2K1116 (5.19)
2K338 (8.06) 2K734 (6.38) 2K1117 (4.75)
2K733 (6.75) 2K1118 (4.50)
2K732 (7.06) 2K1119 (4.06)
2 Impeller 2K815 (3.81) 2K767 (5.12) 2K125 (4.75) 2K155 (5.62) 2K769 (6.12) 2K751 (4.12) 2K1023 (7.06) 2K238 (4.69)
2K814 (4.06) 2K765 (5.38) 2K123 (5.12) 2K153 (5.94) 2K351 (5.75) 2K750 (4.75) 2K1102 (6.88) 2K237 (5.12)
2K813 (4.38) 2K763 (6.19) 2K121 (5.62) 2K350 (6.25) 2K749 (4.94) 2K1103 (6.56) 2K235 (5.50)
2K812 (4.56) 2K761 (6.50) 2K119 (5.94) 2K349 (6.75) 2K748 (5.25) 2K1104 (6.00) 2K234 (6.38)
2K811 (4.81) 2K759 (7.00) 2K348 (7.00) 2K747 (5.44) 2K1105 (5.69) 2K325 (7.06)
Sil-Brass 2K810 (5.06) 2K757 (7.31) 2K347 (7.62) 2K746 (5.62) 2K1106 (5.44)
2K809 (5.50) 2K755 (7.62) 2K346 (7.75) 2K745 (5.88) 2K1107 (5.19)
2K808 (5.75) 2K753 (8.06) 2K345 (8.06) 2K744 (6.38) 2K1108 (4.75)
2K807 (6.00) 2K743 (6.75) 2K1109 (4.50)
2K806 (6.44) 2K742 (7.06) 2K1110 (4.06)
2K805 (6.75)
Motor adapter – seal Cast iron 1K118 1K114 1K110 1K110 1K114 1K118 1K118
140-180JM and frame mounted Sil-Brass 1K111 1K111 1K115 1K119 1K119
(210JM), (256TCZ) Cast iron 1K120 1K116 1K112 1K112 1K116 1K120 1K120
3 Sil-Brass 1K113 1K113 1K117 1K121 1K121
Motor adapter – packing (140- Cast iron 1K369 1K371 1K367 1K367 1K371 1K369 1K369
180J) and frame mounted
(210TCZ) Cast iron 1K370 1K372 1K372 1K370 1K370
4 Casing wear ring Cast iron 4K67 4K69† 4K263
Bronze 4K68 4K70† 4K264
5 Impeller bolt 13K43
6 Impeller washer AISI 303SS 13L39
7 Impeller key 4K11
BUNA 5K4 5K74 5K73 5K74 5K4
8 Casing o-ring EPR 5K193 5K192 5K194 5K192 5K193
Viton 5K206 5K205 5K207 5K205 5K206
Carbon/ceramic BUNA 10K13
9 Seal assembly Carbon/sil-carb. EPR 10K19
Carbon/sil-carb. viton 10K27
Sil-carb./sil-carb./viton 10K64
10 Shaft sleeve – mechanical seal 300SS 4K66
Shaft sleeve – packed box 300SS 4K473
Zinc Plated 6K2 (Quantity 4)
11 ¼" pipe plug (casing) Steel
Bronze 6K42 (Quantity 4)
12 Hex head screw (casing) Zinc 13K69 (Quantity 8)
13 Hex head screw (140 – 180) Plated 13K69 (Quantity 4)
(motor adapter) (210) Steel 13K102
14 Packed box kit includes – gland 316SS 15K16
Packing and lantern Teflon 15K16
15 Gland stud (quantity 2) 300SS 13K295
16 Gland nut (quantity 2) 300SS 13K262
NOTES: Casing includes plugs. Impeller bolt and shaft sleeve must be removed. When replacing, bond and seal shaft sleeve and impeller bolt to shaft with Loctite AL27121.
* 2½ x 3–7 pumps built after April 1, 2006 are supplied with new style impeller. Old style impeller numbers are listed for reference only. Use NEW numbers for repairs.
† 2½ x 3–7 use two casing wear rings, same front and back.
‡ 1750 RPM only.
Item
No . Part Description Material
PUMP END PARTS FOR CLOSE-COUPLED WITH 140JM, 180JM, 210JM
(MECHANICAL SEAL) 140JP, 180JP, 210TCZ (PACKED BOX) 3656/3756 S-Group
PAGE 3
Residential Water Systems
Goulds Water Technology

4 6 7 8 2 5 9 10 3 11
13
12 1 14
PUMP END PARTS FOR CLOSE-COUPLED OR FRAME MOUNTED CONFIGURATION
3656/3756 M & L-Group
Note: For M & L-Group power frame individual parts see M & L-Group Power Frame repair parts pages:
RMPFRAME – M-Group
RLPFRAME – L-Group
RSAFRAME – M and L SAE Frames
Mechanical Seal Arrangement
Packed Box Arrangement
250JP – 360 TCZ, Frame Mount and SAE Drive
250JP – 445TCZ, Close-Coupled
16 17
15 11
3
PAGE 4
Residential Water Systems
Goulds Water Technology

PUMP END PARTS FOR CLOSE-COUPLED WITH 140JM, 180JM, 210JM
(MECHANICAL SEAL), 140JP, 180JP, 210TCZ (PACKED BOX)
(All pumps in this section have a 7⁄8" Diameter Impeller Hub Bore)
3656/3756 M-Group
Repair Part No.
Item Part Description Material 7 AI/BF 16 AI/BF 10 AI/BF 8 AI/BF 11 AI/BF 12 AI/BF 21BF
No. 2½ x 3 – 8 3 x 4 – 8 4 x 5 – 8 1½ x 2 –10 2½ x 3 – 10 3 x 4 – 10 2½ x 3 – 9
1 Casing Cast Iron 1K130 1K316 1K238 1K132 1K236 1K237 1K236
81⁄16 2K573 81⁄16 2K673 81⁄16 2K589 101⁄16 2K609 101⁄16 2K665 101⁄16 2K633
715⁄16 2K575 77⁄16 2K675 77⁄8 2K591 93⁄16 2K611 97⁄8 2K667 9¾ 2K635
77⁄16 2K577 6¾ 2K677 7¾ 2K593 83⁄8 2K613 95⁄8 2K669 9 2K637
73⁄16 2K579 63⁄8 2K679 7½ 2K595 7¾ 2K615 9 2K671 85⁄8 2K639
613⁄16 2K581 515⁄16 2K681 7¼ 2K597 75⁄16 2K617 85⁄8 2K623 81⁄8 2K641
Cast Iron 6½ 2K583 5½ 2K683 7 2K599 7¼ 2K619 8¼ 2K625 75⁄8 2K643
63⁄8 2K585 51⁄8 2K685 6¾ 2K601 7 2K621 8 2K627
63⁄16 2K587 45⁄8 2K687 6½ 2K603 75⁄8 2K629
61⁄16 2K605 77⁄32 2K631
5¾ 2K607
2 Impeller 81⁄16 2K574 81⁄16 2K674 81⁄16 2K590 101⁄16 2K610 101⁄16 2K666 101⁄16 2K634 101⁄16 2K1010
715⁄16 2K576 77⁄16 2K676 77⁄8 2K592 93⁄16 2K612 97⁄8 2K668 9¾ 2K636 97⁄8 2K1011
77⁄16 2K578 6¾ 2K678 7¾ 2K594 83⁄8 2K614 95⁄8 2K670 9 2K638 9½ 2K1012
73⁄16 2K580 63⁄8 2K680 7½ 2K596 7¾ 2K616 9 2K672 85⁄8 2K640 9¼ 2K1013
613⁄16 2K582 515⁄16 2K682 7¼ 2K598 75⁄16 2K618 85⁄8 2K624 81⁄8 2K642 815⁄16 2K1014
Sil-Brass 6½ 2K584 5½ 2K684 7 2K600 7¼ 2K620 8¼ 2K626 75⁄8 2K644 8½ 2K1015
63⁄8 2K586 51⁄8 2K686 6¾ 2K602 7 2K622 8 2K628 87⁄16 2K1016
63⁄16 2K588 45⁄8 2K688 6½ 2K604 75⁄8 2K630 8 2K1017
61⁄16 2K606 71⁄8 2K632 711⁄16 2K1018
5¾ 2K608
Motor adapter 140-180JM
1K114 1K319
3 -Seal 210JM Cast Iron 1K116 1K320
Motor adapter 140-180JP 1K371 1K381
-Packing 210TCZ 1K372 –
4 Front wear ring Cast Iron 4K265 4K350 4K352 4K267 4K265 4K350
Bronze 4K266 4K351 4K353 4K268 4K266 4K351 4K266
5 Back wear ring Cast Iron – – – – – –
Bronze – – – – – –
6 Impeller bolt 13K43
7 Impeller washer AISI 303 SS 13L39
8 Square key 4K11
BUNA 5K74 5K155
9 O-ring Viton 5K205 5K208
EPR 5K192 5K318
Seal assembly
Carbon/ceramic BUNA 10K13
10 Carbon/Sil-carb. EPR 10K19
Carbon/Sil-carb. Viton 10K27
Sil-carb./Sil-carb. Viton 10K64
11 Shaft sleeve 300 SS 4K66
Seal packing 4K473
12 3⁄8” NPT plug Zinc 6K2 6K3
13 Casing HD screw (Quantity 8) Plated 13K69
14 Motor screw (Quantity 4) Steel 13K69 (140 & 180 JM/JP) and 13K102 (250 JM/JP & Frame)
Packed box kit includes:
15 Gland 316 SS
Packing & lantern ring Teflon 15K16
16 Stud, gland (Quantity 2) 300 SS 13K295
17 Hex nut, gland (Quantity 2) 300 SS 13K262
Loctite #271 AL27121
PAGE 5
Residential Water Systems
Goulds Water Technology

PUMP END PARTS FOR CLOSE-COUPLED WITH 250JM-360TCZ (MECHANICAL SEAL), 210JP-
445TCZ (PACKED BOX) AND ALL FRAME MOUNTED CONFIGURATION
3656/3756 M-Group
Note: For M & L-Group power frame individual parts, see M & L-Group Power Frame repair parts page.
Item Repair Part No.
No. Part Description Material 7 AI/BF 16 AI/BF 10 AI/BF 8 AI/BF 11 AI/BF 12 AI/BF 17BF 21BF
2½ x 3-8 3 x 4-8 4 x 5-8 1½ x 2-10 2½ x 3-10 3 x 4-10 4 x 6-10 2½ x 3-9
1 Casing Cast Iron 1K130 1K316 1K238 1K132 1K236 1K237 1K351 1K236
715⁄16 2K168 81⁄16 2K689 81⁄16 2K645 93⁄16 2K176 101⁄16 2K370 101⁄16 2K395
7316 2K170 77⁄16 2K691 77⁄8 2K647 83⁄8 2K178 97⁄8 2K371 9¾ 2K396
613⁄16 2K172 6¾ 2K693 7¾ 2K649 7¾ 2K180 95⁄8 2K372 9 2K397
63⁄16 2K174 63⁄8 2K695 7½ 2K651 7 2K182 9 2K373 85⁄8 2K398
Cast Iron 63⁄8 2K480 515⁄16 2K697 7¼ 2K653 101⁄16 2K490 85⁄8 2K374 81⁄8 2K399
77⁄16 2K482 5½ 2K699 7 2K655 75⁄16 2K492 8¼ 2K375 75⁄8 2K400
51⁄8 2K701 6¾ 2K657 7¼ 2K468 8 2K376
45⁄8 2K703 6½ 2K659 75⁄8 2K377
61⁄16 2K661 71⁄8 2K378
5¾ 2K663
715⁄16 2K169 81⁄16 2K690 81⁄16 2K646 93⁄16 2K177 101⁄16 2K379 101⁄16 2K401 101⁄16 2K816 101⁄16 2K1001
73⁄16 2K171 77⁄16 2K692 77⁄8 2K648 83⁄8 2K179 97⁄8 2K380 9¾ 2K402 99⁄16 2K818 97⁄8 2K1002
2 Impeller 613⁄16 2K173 6¾ 2K694 7¾ 2K650 7¾ 2K181 95⁄8 2K381 9 2K403 91⁄8 2K820 9½ 2K1003
63⁄16 2K175 63⁄8 2K696 7½ 2K652 7 2K183 9 2K382 85⁄8 2K404 811⁄16 2K822 9¼ 2K1004
63⁄8 2K481 515⁄16 2K698 7¼ 2K654 101⁄16 2K491 85⁄8 2K383 81⁄8 2K405 81⁄8 2K824 815⁄16 2K1005
77⁄16 2K483 5½ 2K700 7 2K656 75⁄16 2K493 8¼ 2K384 75⁄8 2K406 7¾ 2K826 8½ 2K1006
51⁄8 2K702 6¾ 2K658 7¼ 2K469 8 2K385 91⁄8 * 2K831 83⁄16 2K1007
Sil-Brass 45⁄8 2K704 6½ 2K660 75⁄8 2K386 8¾ * 2K832 8 2K1008
61⁄16 2K662 71⁄8 2K387 89⁄16 * 2K833 711⁄16 2K1009
5¾ 2K664 81⁄8 * 2K834
7¾ * 2K835
75⁄8 * 2K836
7¼ * 2K837
71⁄16 * 2K838
6¾ * 2K839
Motor adapter – seal
210TCZ-250JM & frame mounted 1K136 1K317 1K317 1K138
3 280JM-360TCZ Cast Iron 1K242 1K318 1K318 1K243
Motor adapter – packing
210JP-250JP & frame mounted 1K357 1K358 1K358 1K355
280JP-360TCZ 1K359 1K360 1K360 1K356 – 1K356
4 Front wear ring Cast Iron 4K265 4K350 4K352 4K267 4K265 4K350 –
Bronze 4K266 4K351 4K353 4K268 4K266 4K351 4K363 4K265
5 Back wear ring Cast Iron 4K265 4K350 4K350 4K265 4K265 – –
Bronze 4K266 4K351 4K351 4K266 4K266 4K266* 4K351 4K265
6 Impeller bolt 13K155 (SAE Drive use 13K341)
7 Impeller washer AISI 303 SS 13K241
8 Square key 4K261
BUNA 5K74 5K155
9 O-ring Viton 5K205 5K208
EPR 5K192 5K318
Seal assembly
Carbon/ceramic BUNA 10K16
10 Carbon/Sil-carb. EPR 10K20
Carbon/Sil-carb. Viton 10K45
Sil-carb./Sil-carb. Viton 10K65
11 Shaft sleeve, mech. seal SS 4K262
Shaft sleeve, packed box SS 4K455
12 3⁄8” NPT plug (Quantity 2) Zinc 6K2 6K3
13 Casing HD screw (Quantity 8) Plated 13K69
14 Motor screw (Quantity 4) Steel 13K102 (250 JM/JP & frame mounted) 13K247 (280 JM/JP & larger)
Packed box kit includes:
15 Gland 316SS 15K3
Packing & lantern ring Teflon
16 Stud, gland (Quantity 2) 300 SS 13K291
17 Hex nut, gland (Quantity 2) 300 SS 13K292
Loctite #271 AL27121
* 3500 RPM units
PAGE 6
Residential Water Systems
Goulds Water Technology

PUMP END PARTS FOR CLOSE-COUPLED WITH 250JM-360TCZ (MECHANICAL
SEAL), 210JP-445TCZ (PACKED BOX) AND ALL FRAME MOUNTED CONFIGURATION
3656/3756 M-Group
Note: For M & L-Group power frame individual parts, see M & L-Group Power Frame repair parts page.
Repair Part No.
Item Part Description Material 13 AI/BF 14 AI/BF 15 AI/BF
No. 2½ x 3-13 3 x 4-13 4 x 6-13
M-Group M-Group M-Group
1 Casing Cast Iron 1K239 1K240 1K479
131⁄16 2K407 131⁄16 2K419 131⁄16 2K979
12¾ 2K408 129⁄16 2K420 127⁄8 2K443
117⁄8 2K409 125⁄16 2K421 12½ 2K444
113⁄8 2K410 12 2K422 12¼ 2K445
97⁄8 2K411 11¾ 2K423 117⁄8 2K446
Cast Iron 93⁄8 2K412 115⁄16 2K424 113⁄8 2K447
10¾ 2K425 111⁄16 2K448
101⁄8 2K426 107⁄8 2K449
91⁄8 2K427 10½ 2K450
811⁄16 2K428 10¼ 2K451
8 2K429 97⁄8 2K452
79⁄16 2K430 93⁄8 2K453
2 Impeller 131⁄16 2K413 131⁄16 2K431 131⁄16 2K980
12¾ 2K414 129⁄16 2K432 127⁄8 2K454
117⁄8 2K415 125⁄16 2K433 12½ 2K455
113⁄8 2K416 12 2K434 12¼ 2K456
97⁄8 2K417 11¾ 2K435 117⁄8 2K457
Sil-Brass 93⁄8 2K418 115⁄16 2K436 113⁄8 2K458
10¾ 2K437 111⁄16 2K459
101⁄8 2K438 107⁄8 2K460
91⁄8 2K439 10½ 2K461
811⁄16 2K440 10¼ 2K462
8 2K441 97⁄8 2K463
79⁄16 2K442 93⁄8 2K464
Motor adapter – seal
210TCZ-250JM 1K244
and frame mounted
3 280JM-360TCZ Cast Iron 1K245
Motor adapter – packing
210JP-250JP 1K361
and frame mounted
280JP-360TCZ 1K362
4 Front wear ring Cast Iron 4K265 4K350 4K362
Bronze 4K266 4K351 4K363
5 Back wear ring Cast Iron 4K350 4K350 4K350
Bronze 4K351 4K351 4K351
6 Impeller bolt 13K155
7 Impeller washer AISI 303 SS 13K241
8 Square key 4K261
9 O-ring BUNA 5K199
Viton 5K209
Seal assembly
Carbon/ceramic BUNA 10K16
10 Carbon/Sil-carb. EPR 10K20
Carbon/sil-carb. Viton 10K45
Sil-carb./sil-carb. Viton 10K65
11 Shaft sleeve, mech. seal SS 4K262
Shaft sleeve, packed box SS 4K455
12 3⁄8” NPT plug (Quantity 2) Zinc 6K3
13 Casing HD screw (Quantity 8) Plated 13K102
14 Motor screw (Quantity 4) Steel 13K102 (250JM/250JP and frame mounted) 13K247 (280JM/JP and larger)
Packed box kit includes:
15 Gland 316SS 15K3
Packing & lantern ring Teflon
16 Stud, gland (Quantity 2) 300SS 13K291
17 Hex nut, gland (Quantity 2) 300SS 13K292
Loctite #271 AL27121
PAGE 7
Residential Water Systems
Goulds Water Technology

PUMP END PARTS FOR CLOSE-COUPLED WITH 250JM-360TCZ (MECHANICAL
SEAL), 210JP-445TCZ (PACKED BOX) AND ALL FRAME MOUNTED CONFIGURATION
3656/3756 L-Group
Note: For M & L-Group power frame individual parts, see M & L-Group Power Frame repair parts page.
Repair Part No.
Item Part Description Material 18BF 18BF 19 BF 20BF
No. 6 x 8-13 6 x 8-13 8 x 10-13 4 x 6-16
M-Group L-Group
1 Casing Cast Iron 1K352 1K352 1K353 1K354
1180 RPM
9½ 2K851 913⁄16 2K897
10 2K850 107⁄8 2K896
10½ 2K849 11¼ 2K895
107⁄8 2K848 1111⁄16 2K894
111⁄8 2K847 1115⁄16 2K893
115⁄8 2K846 123⁄8 2K892
117⁄8 2K889 12¾ 2K891
125⁄16 2K888 13 2K890
12½ 2K887
2 Impeller Sil-Brass 13 2K886
1750 RPM
115⁄8 2K846 13 2K842 13 2K860 16 2K873
111⁄8 2K847 12½ 2K843 12¾ 2K861 155⁄8 2K874
107⁄8 2K848 125⁄16 2K844 123⁄8 2K862 153⁄16 2K875
10½ 2K849 117⁄8 2K845 1115⁄16 2K863 14½ 2K876
10 2K850 115⁄8 2K880 1111⁄16 2K864 13¾ 2K877
9½ 2K851 111⁄8 2K881 11¼ 2K865
107⁄8 2K882 107⁄8 2K866
10½ 2K883 913⁄16 2K867
10 2K884
9½ 2K885
Motor adapter – Mech. seal Frame Mounted –
210JP-250JP 1K377 1K377 1K379
280-360TCZ 1K378
360JP-400TCZ – 1K378 1K380
3 440TCZ Cast Iron – 1K480 & 1K412 –
Motor adapter – Packed box Frame Mounted –
210JP-250JP 1K373 1K373 1K375
280-360TCZ
360JP-400TCZ 1K374 1K376
440TCZ – 1K480 & 1K412 –
4 Front wear ring Bronze 4K475
5 Back wear ring Bronze 4K474 4K476 4K477
6 Impeller bolt 13K155 (SAE Drive use 13K341)
7 Impeller washer AISI 303 SS 13K290
8 Square key 4K460
9 O-ring BUNA 5K199 5K298
Viton 5K209 5K299
Seal assembly (Stat / Rot)
Ceramic/carbon BUNA 10K84
10 Sil-carb./Carbon Viton 10K112
Sil-carb./sil-carb. Viton 10K144
Shaft sleeve, mech. seal Frame Mounted – 4K457
210-320 4K457
11 360-440TCZ 300 SS 4K459
Shaft sleeve, packed box Frame Mounted – 4K456
210-320 4K456
360-440TCZ 4K458
12 Plug, casing (Quantity 2) 6K3
13 Bolt, casing (Quantity 8) Zinc 13K69
Bolt, motor (Quantity 4) Frame Mounted Plated
14 210-250 Steel 13K102 (Quantity 4)
280-405TCZ 13K247 (Quantity 4)
445TCZ 13K247 (Quantity 8)
Packed box kit includes:
15 Gland 316SS 15K4
Packing & lantern ring Teflon
16 Stud, gland (Quantity 2) 300SS 13K291
17 Hex nut, gland (Quantity 2) 300SS 13K292
PAGE 8
Residential Water Systems
Goulds Water Technology

S-GROUP POWER FRAMES AND PARTS
3756/3757/SSH S-Group
• 14L52 – Complete assembly for mechanical seal pumps.
• 15K17 – Complete assembly for packed box pumps.
Complete Bearing Frame Assemblies:
Order 14L52 for mechanical seal models.
Order 15K17 for packed box models.
ITEM NO. OLD NEW DESCRIPTION MATERIAL PATTERN NO.
Regreasable Grease for life
1 1K437 1K322 Bearing cover Cast iron 59027
2 4K277 4K410 Shaft – mechanical seal Steel
— 4K478 Shaft – packed box Steel
3 4K278 4K278 Key – motor end Steel
4 4K279 4K412 Inboard bearing Steel
5 4K280 4K413 Outboard bearing Steel
6 5K159 5K159 Lip seal BUNA/steel
7 5K160 5K160 Deflector BUNA-N
8 NA 5K245 Retaining ring Steel
9 6K80 NA Grease fitting – frame and bearing cover Steel
10 13K80 13K80 Hex head cap screw – bearing cover Steel
11 13K166 NA Locknut Steel
12 13K167 NA Lockwasher Steel
For parts pricing and package stock quantities refer to published parts price list using “K” part no. listed above.
Shaft and mounting face duplicates NEMA 184JM dimensions.
Bearing
Frame
1K321
7 4 2 1 6
810
11 9
35
NEW
(Bearing Retainer Ring Design)
Greased for Life
OLD (Bearing Locknut Design)
Before October, 1994
12 1
Outboard Bearing
5
Inboard Bearing
4
1K1482
6
3
PAGE 9
Residential Water Systems
Goulds Water Technology

4
7
13
2
Obsolete
N/A
10
3
3
1114
10 1 8
5
2106
OLD (Bearing Locknut Design)
12
9
NEW (Bearing Retainer Ring Design)
M&L-GROUP POWER FRAME
3756/3757/SSH M&L-Group
For models 3756, 3757 and SSH mechanical seal pumps and 3756 packed box pumps.
PAGE 10
Residential Water Systems
Goulds Water Technology

M&L-GROUP POWER FRAME REPAIR PARTS
3756/3757/SSH M&L-Group
For models 3756, 3757 and SSH mechanical seal pumps and 3756 packed box pumps.
M-Group:
ITEM NO. PART NO. DESCRIPTION MATERIAL PATTERN NO.
14L60 Power Frame Complete, Mechanical Seal Pump
15K6 Power Frame Complete, Packed Box Pump
1 1K147 Bearing cover Cast iron 59056
2 4K411 Shaft – mechanical seal version Steel
4K453 Shaft – packed box version Steel
3 4K292 Shaft key – motor end Steel
4 4K293 Ball bearing – inboard Steel
5 4K556 Ball bearing – outboard Steel
6 5K163 Deflector BUNA-N
7 5K164 Lip seal – inboard BUNA/Steel
8 5K164 Lip seal – mechanical seal BUNA/Steel
5K280 Lip seal – packed box BUNA/Steel
9 5K246 Retaining ring Steel
10 6K80 Grease fitting – frame and bearing cover Steel
11 13K80 Hex head cap screw – 3/8" - 16 x 1.25 Zinc-Plated Steel
12 13K183 Lockwasher Zinc-Plated Steel
13 13K184 Locknut Zinc-Plated Steel
14 13K158 Lockwasher
3/8" Zinc-Plated Steel
For parts pricing and package stock quantities refer to published parts price list using “K” part no. listed above.
Shaft and mounting face duplicates NEMA 254JM dimensions.
L-Group:
ITEM NO. PART NO. DESCRIPTION MATERIAL PATTERN NO.
15K7 Power Frame Complete (Mechanical Seal or Packed Box)
1 1K147 Bearing cover Cast iron 59056
2 4K454 Shaft Steel
3 4K292 Shaft key – motor end (not shown) Steel
4 4K293 Ball bearing – inboard Steel
5 4K469 Ball bearing – outboard Steel
6 5K163 Deflector BUNA-N
7 5K164 Lip seal – inboard BUNA/Steel
8 5K280 Lip seal – outboard BUNA/Steel
9 5K246 Retaining ring Steel
10 6K80 Grease fitting – frame and bearing cover Zinc-Plated Steel
11 13K80 Hex head cap screw – bearing cover Zinc-Plated Steel
14 13K158 Lockwasher
3/8" Zinc-Plated Steel
For parts pricing and package stock quantities refer to published parts price list using “K” part no. listed above.
PAGE 11
Residential Water Systems
Goulds Water Technology

1) The tissue in plants that brings water upward from the roots;
2) a leading global water technology company.
We’re 12,500 people unied in a common purpose: creating innovative solutions
to meet our world’s water needs. Developing new technologies that will improve
the way water is used, conserved, and re-used in the future is central to our work.
We move, treat, analyze, and return water to the environment, and we help people
use water efciently, in their homes, buildings, factories and farms. In more than
150 countries, we have strong, long-standing relationships with customers who
know us for our powerful combination of leading product brands and applications
expertise, backed by a legacy of innovation.
For more information on how Xylem can help you, go to www.xyleminc.com
Xylem
Goulds is a registered trademark of Goulds Pumps, Inc. and is used under license.
© 2012 Xylem Inc. R36/3756 July 2010
Xylem, Inc.
2881 East Bayard Street Ext., Suite A
Seneca Falls, NY 13148
Phone: (800) 453-6777
Fax: (888) 322-5877
www.xyleminc.com/brands/gouldswatertechnology