545002 1 Goulds Centripro Aquivar Single Pump Drive Specifications

: Pump 545002 1 Goulds Centripro Aquivar Single Pump Drive Specifications 545002_1_Goulds Centripro Aquivar Single Pump Drive Specifications pdf

Open the PDF directly: View PDF PDF.
Page Count: 12

CU
S
UL
®
Aquavar SPD
(Single Pump Drive)
SIMPLEX VARIABLE SPEED PUMP CONTROLLER
FOR SUBMERSIBLE AND CENTRIFUGAL PUMPS
TECHNICAL BROCHURE
BSPDDRIVE R2
PAGE 2
Commercial Water
CentriPro
CentriPro “Aquavar SPD” variable speed, constant pressure pump controller is designed for the professional
pump installer.
With application specific features and CentriPro designed software, the SPD was developed specifically for use
with submersible and centrifugal pumps.
This variable speed controller goes beyond a “standard” drive, giving the pump professional a rugged design
that is built for demanding conditions.
TYPICAL APPLICATIONS
Irrigation Irrigation applications use both submersible and surface pumps. Choose an SPD for control
standard 4" and 6" submersible motors as well as turbine pumps and surface centrifugal pumps up to 30 HP.
Rural Water
Pressure Boosting
Agriculture
Retrofit Existing constant speed control systems
Phase Conversion 1 phase to 3 phase power
Two Versions for Submersible and Above Ground Installations
SPD _____F (example: SPD20050F) Models have filters to reduce electrical noise created by drives with long
wire runs, typical of submersible installations.
SPD ____0 (example: SPD20050) Models are for above ground installation with short wire runs.
PAGE 3
Commercial Water
CentriPro
KEY FEATURES AND BENEFITS
Energy Saving The SPD is a true variable frequency controller which adjusts motor speed to match the
hydraulic needs of the system to maintain pressure. Unlike valve controlled systems, the energy draw is
substantially reduced during lower flow while keeping the pump close to its best efficiency. Up to 70% energy
savings over fixed speed pumps are common.
Easy Set-up Install wiring, set DIP switches and go! Total set up time including wiring is less than 30 minutes.
NEMA 3R Outdoor rated enclosure with operating temperatures from -22º F to 122º F!
Dual Phase Input UL listed for both three phase and single phase input (de-rated available).
Filter Includes output filter rated to 1000 feet of motor lead, standard on models with "F" suffix for
submersible installations.
True Motor Match The SPD is designed for the higher amp requirements typical of submersible pumps on
start-up. A 10 HP SPD will run a 10 HP submersible pump!
Transducer As with all CentriPro drives, the pressure transducer is included.
Full Diagnostics Electrical protection and diagnostics, plus a full range of pump protection features such as
bound pump or motor shut down, low water or loss of prime shut down.
Lockout/Tagout Cover can be locked to prevent unauthorized entry.
Remote on/off Permits external control by timers (irrigation), float or pressure switches (tank draining) or
manual control. Dry contact closure required.
Hand/Auto Option Allows the drive to be run at full speed without a pressure transducer for longer periods
of time as in the case of new well development or system start up. Turning the control back to auto resumes the
automatic pressure tracking and control.
Remote Monitoring External monitors may be connected to the drive for monitoring pump running speed
(4-20 mA output based on speed), pump on, and system fault. The fault indicator can also be connected to
devices like an auto-dialer. This enables control of pumps and drives in un-manned locations. The 4-20 mA
output can be utilized for functions such as an external dosing system, or chlorine injection.
Pressure Drop The drive restart value can be adjusted from 5 PSI drop to 20 PSI. This allows for fewer starts
and for small leaks that can be common in irrigation systems.
Dual Set Point Two pressure set points are available, controlled with an external switch, such as a timer.
No Water Restart Adjust the time delay after a “dry well” fault, from 10 minutes to 2 hours between each
restart. Ideal for low yielding wells.
PAGE 4
Commercial Water
CentriPro
3
FLOW
4
6
5
1
2
8
9
7
L1
L2
L3
GND
T1
T2
T3
GND
10
11
SUPPLY POWER
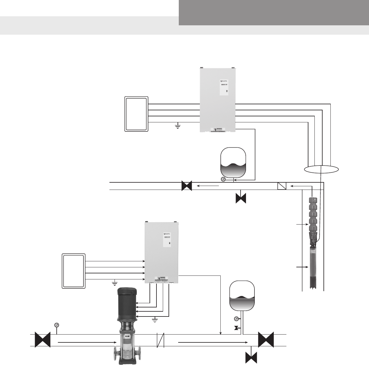
SUBMERSIBLE WELL SPD WITH FILTER CONSTANT PRESSURE LAYOUT
RECOMMENDED INSTALLATION LAYOUT
1 Aquavar SPD Controller
2 Fusible Disconnect
3 Pressure Gauge
4 Air Diaphragm Tank
5 Pressure Transducer
6 3-Phase Output (Always)
1
2
9
7
5
6
4
10
11
8 8
3 PHASE OUTPUT
TO MOTOR
SUPPLY POWER
SUCTION FLOW
AIR
L1
T1
T2 T3
GND
L2
L3
GND
3
10
3
7 Discharge Check Valve
8 Gate Valve (Highly Recommended)
9 Pump End
10 Submersible Motor (3-Phase)
11 Pressure Relief Valve
NOTE: For single phase input, connect L1 and L3 terminals, and adjust motor overload switches to 50% of controller rating or lower.
PAGE 5
Commercial Water
CentriPro
POWER SUPPLY AND WIRING
Single Phase Power Supply
The SPD can be used with single phase input power for 208 V or 230 V power supplies. The maximum output of
the drive and horsepower must be derated to 50% current.
The chart below shows the full load output current ratings of the controller when single phase or 3 phase power
is used. If single phase input power is used the Motor Overload switches must be set to 50% or 40%.
Supply
Voltage
Frame
Size
Model
Number
Nominal HP
Rating with
3 Phase Input
Nominal HP
Rating with
1 Phase Input
Maximum Output
Current with
3 Phase Input
Maximum Output
Current with
1 Phase Input
208/230
1SPD20050 5.0 2.0 17.8 8.1
SPD20050F
2
SPD20075 7.5 3.0 26.4 10.9
SPD20075F
SPD20100 10.0 5.0 37.0 17.8
SPD20100F
3
SPD20150 15.0 7.5 47.4 26.4
SPD20150F
SPD20200 20.0 10.0 60.6 33.0
SPD20200F
4
SPD20250 25.0 12.0 76.0 40.2
SPD20250F
SPD20300 30.0 15.0 94.0 47.4
SPD20300F
460
1
SPD40050 5.0 8.9
SPD40050F
SPD40075 7.5 13.2
SPD40075F
2
SPD40100 10.0 18.5
SPD40100F
SPD40150 15.0 23.7
SPD40150F
SPD40200 20.0 30.3
SPD40200F
3
SPD40250 25.0 37.5
SPD40250F
SPD40300 30.0 47.0
SPD40300F
PAGE 6
Commercial Water
CentriPro
STARTING THE SYSTEM
Setting the Motor Overload Switches
The Motor Overload Setting Switches adjust the level of motor overload current
protection necessary to protect the motor in case of an over current condition.
Bank 1 switches 1, 2 and 3 allow adjustment of the motor overload setting. These
switches adjust the motor overload protection as a percentage of the full load
output current rating of the controller. Choose a motor overload setting that
meets or is less than the motor’s SFA rating. For example, if the full load output
current rating of the controller is 37A and the motor SFA rating is 33A, the motor
overload setting should be set to 85% (33A/37A = 89%, next lowest setting is
85%).
In applications where the pump and motor are not used to the full capacity the
system may not draw current close to the motors SFA rating. In this case choose a
motor overload setting that is close to the actual full load running current.
NOTE: If single phase input power is used the motor overload switches must be
set to 50% or lower or nuisance input phase loss errors can result.
The chart below shows the motor overload setting for each model.
Motor Overload Setting
Supply
Voltage
Frame
Size
Model
Number 100% 95% 90% 85% 80% 70% 50% 40%
208/230
1SPD20050 17.8 16.9 16.0 15.1 14.2 12.5 8.9 7.1
SPD20050F
2
SPD20075 26.4 25.1 23.8 22.4 21.1 18.5 13.2 10.6
SPD20075F
SPD20100 37.0 35.2 33.3 31.5 29.6 25.9 18.5 14.8
SPD20100F
3
SPD20150 47.4 45.0 42.7 40.3 37.9 33.2 23.7 19.0
SPD20150F
SPD20200 60.6 57.6 54.5 51.5 48.5 42.4 30.3 24.2
SPD20200F
4
SPD20250 76.0 72.2 68.4 64.6 60.8 53.2 38.0 30.4
SPD20250F
SPD20300 94.0 89.3 84.6 79.9 75.2 65.8 47.0 37.6
SPD20300F
460
1
SPD40050 8.9 8.5 8.0 7.6 7.1 6.2 4.5 3.6
SPD40050F
SPD40075 13.2 12.5 11.9 11.2 10.6 9.2 6.6 5.3
SPD40075F
2
SPD40100 18.5 17.6 16.7 15.7 14.8 13.0 9.3 7.4
SPD40100F
SPD40150 23.7 22.5 21.3 20.1 19.0 16.6 11.9 9.5
SPD40150F
SPD40200 30.3 28.8 27.3 25.8 24.2 21.2 15.2 12.1
SPD40200F
3
SPD40250 37.5 35.6 33.8 31.9 30.0 26.3 18.8 15.0
SPD40250F
SPD40300 47.0 44.7 42.3 40.0 37.6 32.9 23.5 18.8
SPD40300F
PAGE 7
Commercial Water
CentriPro
INPUT AND OUTPUT FUNCTIONS
The control terminal strips allow for a variety of input and output
functions.
Warning: Turn off all power to the controller before wiring devices to the
control terminals.
Warning: Inputs RUN/STOP, HAND/AUTO, SP2/SP1 and PRESSURE DROP
are switch inputs. Do not connect power to these inputs or damage to the
controller will result. Only connect non-powered switch contacts to these
inputs.
RUN/STOP: This input allows the pump/motor to be turned on and off by
an external switch. Connect the contacts of a non-powered external switch
to terminals 1 (COM) and 2 (RUN/STOP). When the switch is closed the
controller is in RUN mode (output to motor is enabled). When the switch
is open the controller is in STOP mode (output to motor is disabled).
HAND/AUTO: This input allows the controller to run the motor at
full speed without the use of a pressure transducer. This input can be
controlled by an external non-powered switch. Connect the contacts
of a non-powered external switch to terminals 3 (COM) and 4 (HAND/AUTO). When the switch is closed the
controller is in HAND mode. While in HAND mode the RUN/STOP input is used to start and stop the motor and
the pressure transducer input is ignored. When the switch is open the controller is in AUTO mode. While in
AUTO mode the controller uses the pressure transducer feedback to control the speed of the motor.
INPUT and +24V: These terminals are the transducer feedback and transducer power supply. Connect the
white lead from the transducer cable to terminal 6 (INPUT). Connect the brown lead from the transducer
cable to terminal 7 (+24V). Connecting the drain (bare) wire to the chassis allows grounding of the case of the
pressure transducer. The controller is configured with a 300 PSI 4-20mA output pressure transducer.
ANALOG OUTPUT: This output is a 4-20mA signal based on motor speed (4mA = 0Hz, 20mA = 60Hz) and can
be connected to external monitoring or external control devices. Connect terminal 10 (ANALOG OUTPUT) to
the 4-20mA input of the external device. Connect terminal 9 (COM) to the negative side of the current loop
on the external device. The external device must have an input resistance (impedance) in the range of 45Ω to
250Ω. The maximum output voltage is 24V.
SP2/SP1: This input allows the system to operate at one of 2 pressure settings. This input can be controlled by
an external non-powered switch. Connect the contacts of a non-powered external switch to terminals 5 (COM)
and 11 (SP2/SP1). When the switch is closed pressure set point 2 is enabled (preset to 75 PSI when used with a
300 PSI transducer). When the switch is open pressure set point 1 is enabled (preset to 50 PSI when used with a
300 PSI transducer).
PRESSURE DROP: This input allows the user to select the amount of pressure drop in the system before the
pump starts. This input can be controlled by an external non-powered switch. Connect the contacts of a non-
powered external switch to terminals 5 or 9 (COM) and 12 (PRESSURE DROP). When the switch is closed the
system pressure will drop 20 PSI (when used with a 300 PSI transducer) before restarting the pump. When the
switch is open the system pressure will drop 5 PSI (when used with a 300 PSI transducer) before restarting the
pump.
RUN RELAY: This output indicates when the pump/motor is running. This output can be used to control power
to a light, an alarm or other external device. When the pump/motor is off terminal 13 (RELAY1 – NO) will be
open and terminal 14 (RELAY 1 – NC) will be connected to terminal 15 (RELAY1 – COM). When the pump/motor
is on terminal 13 (RELAY1 – NO) will be connected to terminal 15 (RELAY1 – COM) and terminal 14 (RELAY 1 –
NC) will be open. The relay rating is 250Vac, 5 amps maximum.
FAULT RELAY: This output indicates when the system is faulted. This output can be used to control power to a
light, an alarm or other external device. When the system is not faulted terminal 16 (RELAY2 – NO) will be open
and terminal 17 (RELAY 2 – NC) will be connected to terminal 18 (RELAY2 – COM). When the system is faulted
terminal 16 (RELAY2 – NO) will be connected to terminal 18 (RELAY2 – COM) and terminal 17 (RELAY 2 – NC)
will be open. The relay rating is 250Vac, 5 amps maximum.
PAGE 8
Commercial Water
CentriPro
Motor Overload Setting:
May be set from 40-100%
Minimum Speed:
15 Hz and 30 Hz minimum frequency settings. (Permanently set to 30 Hz on filtered product.)
Carrier Frequency:
2 KHz to 8 KHz (Permanently set to 2 KHz on filtered product.)
Ramp Setting:
Adjust acceleration and deceleration ramps from .5 to 7 seconds
No Water Restart Time:
Restart delay after ddry well or loss of prime fault adjustable from 10 minutes to 2 hours.
Motor Overload/Ramp Switches Digital Input Controls/Relays
PAGE 9
Commercial Water
CentriPro
Carrier (IGBT switching) frequency: 2 KHz to 8 KHz
Outputs Analog output: 4-20mA output based on drive frequency. 0-60 Hz.
Pump run status: Relay to indicate pump run status.
Drive fault status: Relay to indicate pump, motor or controller fault. May be connected to
outside warning device or auto-dialer.
LED Lights: Green – standby or pump running
Orange – Under voltage
RedNumber of blinks determine: replace controller, no water/loss of
prime, sensor fault, pump or motor bound, short circuit/ground fault,
input phase loss, temperature, over-voltage, or motor overload.
Electrical Efficiency Over 95% at Full Load
No water restart time Adjustable restart time for “dry well” function from 10 min. to 2 hours.
Protection Against Short circuit, under voltage, motor overload, temperature, dead heading, run out, suction
loss, sensor fault, bound pump, overvoltage, static discharge, dry well.
Max. Elevation 2000 m (6600 ft.)
Ambient Temp. -22º F to 122º F
Max. Humidity 95% at 104F non-condensing
Air Pollution Avoid mounting in areas with excessive dust, acids, corrosives and salts.
Approvals UL, cUL, CE
Enclosure Painted Steel enclosure, NEMA 3R, IP43, (rain tight)
Mounting Wall mount
Cooling Attached heat sink and fan.
Transducer 4-20 mA rated to 300 PSI with 180-inch, 3 core shielded cable, with internal case ground.
Output Filter Integrated filters protect the motor from voltage spikes even with up to 1,000 feet of wire
(Optional) between controller and motor.
WEIGHTS AND DIMENSIONS
Filtered Product Non-Filtered Product
Size 1 21 lbs. 17 lbs.
Size 2 27 lbs. 22 lbs.
Size 3 52 lbs. 41 lbs.
Size 4 110 lbs. 84 lbs.
SIZE 1
SIZE 2
SIZE 3 SIZE 4
PAGE 10
Commercial Water
CentriPro
TROUBLESHOOTING
General
The Aquavar SPD drives are self-diagnosing controllers. If a problem occurs, observe the Status Code Indicator
Light on the front of the unit. No Status Code Indicator Light means either no or low input voltage (less than
140Vac).
Refer to the status code label on the side of the controller access cover to diagnose system errors.
See the following diagram.
Red Flashes Fault Code Restart Action
Constant Replace Controller Controller will not restart. Power must be reset to clear the fault.
2 Blinks No Water/Loss of Prime Controller will restart automatically according to the No Water
Restart Time switches (switches 3 & 4 of bank 2).
3 Blinks Sensor Fault Controller will restart automatically when the sensor signal is
within the valid operating range.
4 Blinks Pump or Motor Bound Controller will restart automatically 5 times. After 5 faults the
power must be reset to clear the fault.
5 Blinks Short Circuit/Ground Fault Controller will not restart. Power must be reset to clear the fault.
6 Blinks Input Phase Loss Controller will restart automatically 5 times. After 5 faults the
power must be reset to clear the fault.
7 Blinks Temperature Controller will restart automatically when temperature is within
the operating range of the controller.
8 Blinks Over Voltage Controller will restart automatically when the input voltage is
within the operating range of the controller.
9 Blinks Motor Overload Controller will restart automatically.
PAGE 11
Commercial Water
CentriPro
VFD INPUT WIRE SIZING CHARTS
Maximum Allowable Conductor Length (40˚C Ambient, 5% Voltage Drop)
Ratings Conductor Size (75˚C Rated Wire)
Controller
Input
Motor
HP
Motor
SFA
Input
Current 14 12 10 8 6 4 3 2 1 1/0 2/0 3/0 4/0 250 300 350 400 500 600 750 1000
230V,
Single
Phase
Input
½ 2.9 7.2
400 618 1020 1532 2348 3530 4242 5335 6358 7562 8633 10297 11821 13013 14156 15361 16333 17959 19017 20579 22421
¾ 3.8 9.4
301 467 775 1167 1790 2693 3236 4071 4851 5770 6587 7858 9021 9931 10803 11722 12465 13705 14513 15705 17111
1 4.7 11.6
239 374 623 941 1445 2175 2615 3290 3921 4664 5325 6352 7293 8029 8734 9477 10078 11081 11734 12698 13834
1½ 6.1 15.1
178 282 475 721 1110 1673 2012 2533 3019 3592 4102 4894 5618 6186 6729 7302 7764 8537 9041 9784 10659
2 7.6 18.8
219 375 574 887 1340 1612 2030 2421 2882 3291 3927 4509 4964 5400 5860 6232 6852 7256 7852 8555
3 10.1 25.0
273 426 662 1003 1209 1524 1819 2165 2474 2953 3391 3734 4063 4409 4689 5156 5460 5909 6437
5 17.0 42.1
378 583 708 896 1072 1279 1464 1749 2011 2216 2411 2617 2784 3062 3242 3510 3824
7½ 26.0 64.3
366 449 573 690 826 950 1137 1309 1444 1573 1708 1818 2000 2118 2294 2499
10 33.0 81.7
441 534 643 742 890 1027 1135 1236 1343 1430 1574 1668 1806 1968
15 47.4 117.3
432 504 609 706 783 854 930 992 1093 1158 1256 1369
230V,
3 Phase
Input
½ 2.9 3.4
818 1263 2087 3160 4908 7511 9123 11653 14168 17119 19844 24266 28469 32000 35524 39133 42344 47573 51360 56659 63177
¾ 3.8 4.5
623 962 1591 2410 3745 5731 6962 8893 10812 13064 15144 18519 21727 24421 27111 29865 32315 36306 39196 43240 48214
1 4.7 5.5
501 776 1285 1948 3027 4633 5628 7189 8741 10562 12244 14972 17566 19744 21919 24146 26127 29354 31690 34960 38981
1½ 6.1 7.2
383 595 988 1499 2331 3568 4335 5538 6734 8137 9433 11536 13534 15213 16888 18604 20131 22617 24417 26936 30035
2 7.6 8.9
304 474 790 1201 1869 2863 3478 4444 5404 6530 7571 9258 10862 12210 13555 14932 16157 18153 19598 21620 24107
3 10.1 11.9
224 351 590 900 1403 2152 2615 3342 4065 4912 5696 6966 8173 9187 10199 11235 12158 13659 14747 16268 18140
5 17.0 20.0
196 339 527 826 1272 1548 1981 2410 2915 3381 4136 4853 5456 6058 6674 7222 8114 8760 9665 10777
7½ 26.0 30.6
333 530 823 1005 1288 1570 1900 2206 2700 3170 3565 3959 4362 4720 5304 5727 6319 7045
10 33.0 38.8
254 409 641 785 1009 1231 1492 1734 2124 2495 2806 3117 3435 3718 4178 4511 4978 5550
15 46.0 54.1
280 447 553 713 874 1062 1237 1517 1784 2009 2232 2461 2664 2995 3234 3570 3980
20 60.0 70.6
412 536 660 805 941 1156 1362 1536 1707 1883 2040 2294 2477 2735 3050
25 76.0 89.4
410 509 624 734 905 1069 1207 1343 1482 1607 1808 1953 2158 2406
30 94.0 110.6
493 584 722 856 969 1080 1193 1295 1459 1576 1742 1943
460V,
3 Phase
Input
5 8.5 10.0
539 843 1409 2145 3339 5117 6219 7945 9662 11677 13537 16555 19424 21834 24239 26701 28893 32461 35045 38661 43109
7½ 13.0 15.3
335 534 906 1391 2174 3337 4059 5189 6312 7630 8847 10821 12697 14274 15846 17457 18890 21224 22913 25278 28186
10 16.5 19.4
406 701 1087 1704 2622 3192 4082 4968 6006 6967 8522 10001 11244 12483 13752 14882 16721 18052 19916 22206
15 23.0 27.1
482 763 1207 1868 2279 2918 3554 4301 4991 6108 7170 8062 8952 9863 10674 11994 12949 14286 15930
20 30.0 35.3
568 909 1418 1734 2225 2715 3288 3819 4676 5491 6176 6859 7558 8180 9193 9925 10951 12211
25 37.0 43.5
721 1135 1394 1792 2190 2656 3089 3784 4446 5003 5557 6124 6630 7452 8045 8878 9900
30 47.0 55.3
874 1080 1395 1709 2077 2421 2969 3492 3932 4369 4816 5215 5863 6330 6987 7791
40 60 70.6
824 1072 1320 1610 1882 2313 2725 3071 3414 3766 4079 4588 4954 5470 6100
50 79 92.9
785 976 1198 1409 1738 2054 2320 2581 2850 3090 3479 3757 4151 4629
60 90 105.9
841 1036 1225 1514 1793 2028 2259 2495 2707 3049 3293 3641 4061
75 109 128.2
990 1230 1464 1660 1852 2049 2226 2511 2712 3001 3348
100 145 170.6
1072 1224 1371 1521 1658 1875 2027 2248 2509
125 180 211.8
1083 1207 1320 1499 1621 1803 2013
150 220 258.8
1063 1212 1312 1466 1638
200 270 317.6
1052 1182 1323
Lengths in BOLD require 90˚C wire Input connections for models SPD20300 and SPD20300F require 90ºC wire
For output cable sizing and maximum length, consult MAID Manual (BMAID).
CentriPro and Aquavar SPD are trademarks of Xylem Inc. or one of its subsidiaries.
© 2012 Xylem Inc. BSPDDRIVE R2 February 2013
Xylem, Inc.
2881 East Bayard Street Ext., Suite A
Seneca Falls, NY 13148
Phone: (800) 453-6777
Fax: (888) 322-5877
www.centripro.com
1) The tissue in plants that brings water upward from the roots;
2) a leading global water technology company.
We’re 12,500 people unified in a common purpose: creating innovative solutions
to meet our world’s water needs. Developing new technologies that will improve
the way water is used, conserved, and re-used in the future is central to our work.
We move, treat, analyze, and return water to the environment, and we help people
use water efficiently, in their homes, buildings, factories and farms. In more than
150 countries, we have strong, long-standing relationships with customers who
know us for our powerful combination of leading product brands and applications
expertise, backed by a legacy of innovation.
For more information on how Xylem can help you, go to www.xyleminc.com
Xylem

Navigation menu