545079 1 Goulds Marlow Series Primeline Brochure
545079 2 Goulds Marlow Series Prime Line Brochure 545079_2_Goulds Marlow Series Prime Line Brochure
545079 2 Goulds Marlow Series Primeline Brochure 545079_2_Goulds Marlow Series Primeline Brochure 545079_2_Goulds Marlow Series Primeline Brochure pdf pumpproducts
: Pump 545079 1 Goulds Marlow Series Primeline Brochure 545079_1_Goulds Marlow Series Primeline Brochure pdf
Open the PDF directly: View PDF
.
Page Count: 32

Marlow Series
Prime Line®
SELF-PRIMING CENTRIFUGAL PUMPS TECHNICAL DATA
TECHNICAL BROCHURE
BPRIMELINE R1

PAGE 2
Commercial Water
Goulds Water Technology
Prime Line®
A Full Range of Product Features
Rugged Construction: Cast iron
construction in close coupled and frame
mounted design.
Superior Priming: High suction inlet and
internal suction check valve keeps more
liquid in the casing for faster priming and
repriming.
Diffuser Priming: The patented diffuser
design allows impeller trim, reduces
internal wear and eliminates radial loads.
High Efciency: Enclosed, trimable
impellers provide efciencies from 60-
75% for low energy costs.
Dimensional Interchangeability: Four
pump groups allow performance to be
changed with replaceable impellers and
diffusers.
NOTE:
The various versions of the Prime Line are
identied by product code numbers as
explained to the right. Note that not all
combinations of impeller and motor are
possible.
Example Product Code
Prime Line®
Product Line Numbering System
M 2P1 A 2 1 B 2 A 0 B C E
Epoxy Coated
CE label energy efcient
Optional Base (close-coupled)
Mechanical Seals
Code Rotary Stationary Elastomers
0 Carbon Ceramic BUNA N
1 Carbon Ceramic Viton
2 Sil Car Sil Car Viton
3 Sil Car Sil Car EPR
Impeller Options
2P1 2P2 2P3 2P4 3P1 3P2 3P3 3P4 4P1 4P2 4E1 6E1 6E2
A 6.88 4.88 5.69 6.88 8.75 5.88 8.06 7 10.63 9 12 11.5 12.5
B 6.5 4.63 5.44 6.63 8.5 5.5 7.69 6.75 10.38 8.75 11.5 11 12
C 6.13 4.38 5.19 6.38 8.25 5.13 7.31 6.5 10.13 8.5 11 10.5 11.5
D – 4.13 4.94 6.13 8 4.75 6.94 6.25 9.88 8.25 10.5 10 11
E – – – 5.75 7.75 – – 6 – – 10 9.5 –
Driver*
1 = 1 PH, ODP 6 = 575 V, TEFC
2 = 3 PH, ODP 7 = 3 PH, Exp. Proof
3 = 575 V, ODP 8 = 575 V, Exp. Proof
5 = 3 PH, TEFC 9 = 1 PH, TEFC
Horsepower Rating*
A = 1½ HP G = 15 HP
B = 2 HP H = 20 HP
C = 3 HP J = 25 HP
D = 5 HP K = 30 HP
E = 71⁄2 HP M = 40 HP
F = 10 HP N = 50 HP
Driver: Hertz/RPM*
1 = 60 Hz, 3500 RPM 4 = 50 Hz, 2850 RPM
2 = 60 Hz, 1750 RPM 5 = 50 Hz, 1450 RPM
3 = 60 Hz, 1150 RPM
Shaft Sleeve
0 = No Sleeve (E-Series only)
2 = 316 Stainless Steel
Impeller Material **
A = Iron
S = Stainless Steel (4EI, 6EI)
Pump Size
2P1 = 2 x 2–67⁄8 4P1 = 4 x 4–105⁄8
2P2 = 2 x 2–47⁄8 4P2 = 4 x 4–9
2P3 = 2 x 2–511⁄16 Frame Mounted
2P4 = 2 x 2–6 only:
3P1 = 3 x 3–83⁄4 4E1 = 4 x 4–12
3P2 = 3 x 3–57⁄8 6E1 = 6 x 6–11½
3P3 = 3 x 3–81⁄16 6E2 = 6 x 6–12½
3P4 = 3 x 3–7
Marlow Series
* Substitute “FRM” for frame mounted with carbon
steel shaft or “FRS” for frame mounted with 316SS
shaft (316SS shaft available on frame mounted
only).
** Recommended use of “FRS” frame with stainless
steel impeller.
Not
used
for
frame
mount-
ed
units,
use
FRM.
FRS for
frame
mount
with
316SS
shaft.

PAGE 3
Commercial Water
Goulds Water Technology
Prime Line® Performance Coverage (60 Hz) 2P – 4P
Prime Line® Key Features
3P3
3P4
2P4
2P3
2P2
3P2
3P1
2P1
4P1
&
4P2
NEW PRIME LINE
HYDRAULICS
COVERAGE
0 100 200 300 400 500 600 700 800
020406080 100 120 140 160 180
0
100
200
300
0
20
40
60
80
100
FEET
METERS
TOTAL
HEAD IN
CAPACITY IN CUBIC METERS PER HOUR
CAPACITY IN U.S. GPM
Suction, discharge
gauge tap and ller
plugs provided.
Integral steel-
weighted, molded
rubber check valve.
Back pullout design.
Bearing housing with grease: P Series
Bearing housing with oil: E Series
High-efciency
impeller designs.
All cast iron parts are ASTM #A48,
Class 25 minimum.
Industry standard, self-
lubricated mechanical seal.
Fast priming.
Pumping efciencies
in the 60-75% range
for signicant energy
savings.
Close- or long-
coupled, standard.

PAGE 4
Commercial Water
Goulds Water Technology
Prime Line® 2P – 4P Close-Coupled Pumps — Materials of Construction
Item No. Description Materials
1 Casing Cast Iron
2 Pipe Plug Steel
4 Bolt, Impeller Stainless Steel
5 Washer, Impeller Stainless Steel
6 Closed Impeller Cast Iron
7➀ O-Ring BUNA-N
8 Diecut Gasket Lexide
10 Seal Housing Cast Iron
17➀ Single Mechanical Seal Miscellaneous
24 Shaft Sleeve Stainelss Steel
27 Pipe Plug Steel
37 Impeller Key Steel
Item No. Description Materials
46 Diffuser Cast Iron
49 Diecut Gasket Lexide
50 Suction Inlet Cast Iron
51➀ Check Valve BUNA-N
53 Keeper Stainless Steel
54 Bolt, Shoulder Stainless Steel
63 Slinger Rubber
67 Motor Adapter Cast Iron
69 Motor (specify) —
72 Shim Steel
73 Riser Steel
➀ Item Nos. 7, 17 and 51 are available in Viton® as an optional material.
15427495027 810
6
4
5
37
17
67
24
63 69
72
73
7
46
2
2
51
53

PAGE 5
Commercial Water
Goulds Water Technology
Prime Line® 2P – 4P Frame Mounted Pumps Materials of Construction
Item No. Description Materials
1 Casing Cast Iron
2 Pipe Plug Steel
4 Bolt, Impeller Stainless Steel
5 Washer, Impeller Stainless Steel
6 Closed Impeller Cast Iron
7➀ O-Ring BUNA-N
8 Diecut Gasket Lexide
10 Seal Housing Cast Iron
17➀ Single Mechanical Seal Miscellaneous
24 Shaft Sleeve Stainless Steel
28 Grease Fitting Steel
31 Bearing Housing Cast Iron
35 Mounting Foot Steel
36 Bearing Steel
Item No. Description Materials
37 Impeller Key Steel
38 Shaft Steel
39 Coupling Key Steel
40 Bearing Retainer Steel
41 Diecut Gasket Steel
42 Lip Seal BUNA/Steel
43 Bearing Cap Cast Iron
46 Diffuser Cast Iron
49 Diecut Gasket Lexide
50 Inlet Suction Cast Iron
51➀ Check Valve BUNA-N
53 Keeper Stainless Steel
54 Bolt, Shoulder Stainless Steel
63 Slinger Rubber
➀ Item Nos. 7, 17 and 51 are available in Viton as an optional material.
15427495027 8
10
6
4
5
37
17
63
42 36
7
46 28
2
2
51
53
41
40
43 39
38
42
36
35
31
24

PAGE 6
Commercial Water
Goulds Water Technology
Prime Line® 4E and 6E Pumps — Materials of Construction
Item No. Description Materials
1 Casing Ductile Iron
2 Pipe Plug Cast Iron
4 Locknut, Impeller Steel
5 Washer, Curved Stainless Steel
7* O-RIng Buna-N Rubber
8 Gasket, Diecut Composite
10 Housing Seal Cast Iron
17* Seal, Single Mechanical Carbon vs. Ceramic
27 Pipe Plug Steel
28 Pipe Plug Steel
29 Oiler (optional) —
30 Vent, Filter Steel
31 Housing, Bearing Cast Iron
35 Foot, Mounting Steel
36 Bearing #313
37 Key, Impeller Steel
38 Shaft Steel
39 Key, Coupling Steel
42 Retainer Steel/Rubber
44 Lockwasher Stainless Steel
45 Capscrew Stainless Steel
Item No. Description Materials
46 Diffuser Cast Iron
49 Gasket, Diecut Composite
50 Inlet, Suction Cast Iron
51* Valve, Check Buna-N Rubber
53 Keeper Stainless Steel
63 Slinger PVC
67 Bracket Cast Iron
91 Impeller Cast Iron
93 Gasket, Diecut Composite
96 Gasket, Diecut Composite
106 Ring, Retaining Steel
107 Shim, Bearing Steel
108 Ring, Retaining Steel
109 O-Ring Buna-N Rubber
110 Carrier, Bearing Cast Iron
111 Hexnut, Jam Stainless Steel
118 Bolt, Shouldered Stainless Steel
130 Adapter, Plate Cast Iron
132 Cover, Casing Cast Iron
133 Capscrew Stainless Steel
134 Lockwasher Stainless Steel
*Available in Viton® as an option.
27 50 51 53 118 132 93 96 7 46 37 91 1 10 130 67 42 27 36 31 30 106 117 109 110
49 2 4 133 134 5 8 17 63 27 29 27 28 28
111
112
42
38
39
108
107
45
44
35

PAGE 7
Commercial Water
Goulds Water Technology
Prime Line® Performance Coverage (60 Hz) 4E and 6E
0 500 1000
0
0
100
0
20
40
FT.M
CAPACITY
GPM
50
150
10
30
50
4E1
6E1
6E2
1500 2000
m3/h 100 200 300400 500
TOTAL HEAD

PAGE 8
Commercial Water
Goulds Water Technology
Prime Line® Performance Curves – Size 2P1, 60 Hz
Ordering Standard Imp.
Code HP Rating Dia.➀
A 3 6.88
(175)
B 2 6.5
(165)
C 11⁄2* 6.13
(156)
* Requires service factor.
➀ Impeller diameter in
inches and millimeters
(mm).
Prime Line® Performance Curves – Size 2P1, 50 Hz
1612840
Maximum Priming Capability is 22' (6.7 m), based on minimum length of 2" (51)
Suction Line, 68º F (20º C) Water at Sea Level, 6.88" (175) DIA. MODEL: 2P1
SIZE: 2" (51)
LIQUID: SP. GR. 1.0
SPEED: 1750 RPM
IMP. DIA.: AS SHOWN
CAPACITY IN U.S. GPM
TOTAL
HEAD IN
CAPACITY IN CUBIC METERS PER HOUR
32282420 4036
020406080 100 120 140 160 180
0
10
20
30
40
50
0
4
8
12
16
METERS
FEET
0
5
10
0
10
20
30
IN METERS
NPSHR
IN FEET
NPSHR - 6.13" (156) DIA.
NPSHR - 6.88" (175) DIA.
6.88" (175) DIA.
6.13" (156) DIA.
6.5" (165) DIA.
30% 40%
50%
45%
53% 55%
57%
1.5 HP
2 HP
57%
55%
53%
50%
1612840
Maximum Priming Capability is 17' (5.2 m), based on minimum length of 2" (51)
Suction Line, 68º F (20º C) Water at Sea Level, 6.88" (175) DIA. MODEL: 2P1
SIZE: 2" (51)
LIQUID: SP. GR. 1.0
SPEED: 1450 RPM
IMP. DIA.: AS SHOWN
CAPACITY IN U.S. GPM
TOTAL
HEAD IN
CAPACITY IN CUBIC METERS PER HOUR
32282420 4036
020406080 100 120 140 160 180
0
10
20
30
40
50
0
4
8
12
16
METERS
FEET
0
5
10
0
10
20
30
IN METERS
NPSHR
IN FEET
NPSHR - 6.13" (156) DIA.
NPSHR - 6.88" (175) DIA.
6.88" (175) DIA.
6.13" (156) DIA.
6.5" (165) DIA.
.75 BHP
30%40% 50% 55% 60% 65% 68%
68%
65%
60%
1.3 BHP
1 BHP
Ordering Standard Imp.
Code HP Rating Dia.➀
A 11⁄2
6.88
(175)
B 11⁄2
6.5
(165)
C 1 6.13
(156)
➀ Impeller diameter in
inches and millimeters
(mm).

PAGE 9
Commercial Water
Goulds Water Technology
Prime Line® Performance Curves – Size 2P2, 60 Hz
Ordering Standard Imp.
Code HP Rating Dia.➀
A 5 4.88
(124)
B 3* 4.63
(117)
C 3 4.38
(111)
D 2* 4.13
(105)
* Requires service factor.
➀ Impeller diameter in
inches and millimeters
(mm).
Prime Line® Performance Curves – Size 2P2, 50 Hz
Ordering Standard Imp.
Code HP Rating Dia.➀
A 3 4.88
(124)
B 2 4.63
(117)
C 11⁄2* 4.38
(111)
D 11⁄2
4.13
(105)
* Requires service factor.
➀ Impeller diameter in
inches and millimeters
(mm).
1612840
Maximum Priming Capability is 25' (7.6 m), based on minimum length of 2" (51)
Suction Line, 68º F (20º C) Water at Sea Level, 4.88" (124) DIA. MODEL: 2P2
SIZE: 2" (51)
LIQUID: SP. GR. 1.0
SPEED: 3450 RPM
IMP. DIA.: AS SHOWN
CAPACITY IN U.S. GPM
TOTAL
HEAD IN
CAPACITY IN CUBIC METERS PER HOUR
32282420 4036
020406080 100 120 140 160 180
0
20
40
60
80
100
0
5
10
15
30
METERS
FEET
0
5
10
0
10
20
30
IN METERS
NPSHR
IN FEET
NPSHR - 4.13" (105) DIA.
NPSHR - 4.88" (124) DIA.
4.88" (124) DIA.
4.63" (117) DIA.
30% 40%
50%
53%
55%
45%
3 HP
4.13" (105) DIA.
4.38" (111) DIA.
53%
50%
40%
20
25
55%
45%
30%
1612840
Maximum Priming Capability is 25' (7.6 m), based on minimum length of 2" (51)
Suction Line, 68º F (20º C) Water at Sea Level, 4.88" (124) DIA. MODEL: 2P2
SIZE: 2" (51)
LIQUID: SP. GR. 1.0
SPEED: 2850 RPM
IMP. DIA.: AS SHOWN
CAPACITY IN U.S. GPM
TOTAL
HEAD IN
CAPACITY IN CUBIC METERS PER HOUR
32282420 4036
020406080 100 120 140 160 180
0
20
40
60
80
0
5
10
20
25
METERS
FEET
0
5
10
0
10
20
30
IN METERS
NPSHR
IN FEET
NPSHR - 4.38" (111) DIA. NPSHR - 4.88" (124) DIA.
2 BHP
30% 40% 50% 55% 60%
45%
60%
55%
50%
40%
1.5 BHP
2.5 BHP
4.88" (124) DIA.
4.63" (117) DIA.
4.13" (105) DIA.
4.38" (111) DIA.
15

PAGE 10
Commercial Water
Goulds Water Technology
Prime Line® Performance Curves – Size 2P3, 60 Hz
Ordering Standard Imp.
Code HP Rating Dia.➀
A 71⁄2
5.69
(144)
B 71⁄2
5.44
(138)
C 5* 5.19
(132)
D 5 4.94
(125)
* Requires service factor.
➀ Impeller diameter in
inches and millimeters
(mm).
Prime Line® Performance Curves – Size 2P3, 50 Hz
403020100
Maximum Priming Capability is 25' (7.6 m), based on minimum length of 2" (51)
Suction Line, 68º F (20º C) Water at Sea Level, 5.69" (144) DIA. MODEL: 2P3
SIZE: 2" (51)
LIQUID: SP. GR. 1.0
SPEED: 3450 RPM
IMP. DIA.: AS SHOWN
CAPACITY IN U.S. GPM
TOTAL
HEAD IN
CAPACITY IN CUBIC METERS PER HOUR
6050
04080 120 160 200 240 280 320 360
20
40
60
80
100
120
10
20
30
METERS
FEET
0
5
10
0
10
20
30
IN METERS
NPSHR
IN FEET
NPSHR - 4.94" (125) DIA.
NPSHR - 5.69" (144) DIA.
5 HP
30% 40%
50%
60%
50%
55%
7.5 HP
5.69" (144) DIA.
5.44" (138) DIA.
4.94" (125) DIA.
5.19" (132) DIA.
58%
58%
60%
55%
Ordering Standard Imp.
Code HP Rating Dia.➀
A 5 5.69
(144)
B 5 5.44
(138)
C 3* 5.19
(132)
D 3 4.94
(125)
* Requires service factor.
➀ Impeller diameter in
inches and millimeters
(mm).
403020100
Maximum Priming Capability is 25' (7.6 m), based on minimum length of 2" (51)
Suction Line, 68º F (20º C) Water at Sea Level, 5.69" (144) DIA. MODEL: 2P3
SIZE: 2" (51)
LIQUID: SP. GR. 1.0
SPEED: 2850 RPM
IMP. DIA.: AS SHOWN
CAPACITY IN U.S. GPM
TOTAL
HEAD IN
CAPACITY IN CUBIC METERS PER HOUR
6050
04080 120 160 200 240 280 320 360
20
40
60
80
100
10
20
30
METERS
FEET
0
5
10
0
10
20
30
IN METERS
NPSHR
IN FEET
NPSHR - 4.94" (125) DIA.
NPSHR - 5.69" (144) DIA.
3 BHP
30%40%50%
60%
60%
65%
55%
4 BHP
2 BHP
5.44" (138) DIA.
4.94" (125) DIA.
5.19" (132) DIA. 65%
67%
67%
0
0
5.69" (144) DIA.
50%

PAGE 11
Commercial Water
Goulds Water Technology
Prime Line® Performance Curves – Size 2P4, 60 Hz
Ordering Standard Imp.
Code HP Rating Dia.➀
A 15 6.88
(175)
B 15 6.63
(168)
C 10* 6.38
(162)
D 10 6.13
(156)
E 71⁄2* 5.75
(146)
* Requires service factor.
➀ Impeller diameter in
inches and millimeters
(mm).
Prime Line® Performance Curves – Size 2P4, 50 Hz
Ordering Standard Imp.
Code HP Rating Dia.➀
A 10 6.88
(175)
B 71⁄2* 6.63
(168)
C 71⁄2
6.38
(162)
D 71⁄2
6.13
(156)
E 5 5.75
(146)
* Requires service factor.
➀ Impeller diameter in
inches and millimeters
(mm).
403020100
Maximum Priming Capability is 25' (7.6 m), based on minimum length of 2" (51)
Suction Line, 68º F (20º C) Water at Sea Level, 6.88" (175) DIA. MODEL: 2P4
SIZE: 2" (51)
LIQUID: SP. GR. 1.0
SPEED: 3450 RPM
IMP. DIA.: AS SHOWN
CAPACITY IN U.S. GPM
TOTAL
HEAD IN
CAPACITY IN CUBIC METERS PER HOUR
6050
050 100 150 200 250 300 350
100
150
200
250
40
50
60
METERS
FEET
0
5
10
0
10
20
30
IN METERS
NPSHR
IN FEET
NPSHR - 5.75" (146) DIA.
NPSHR - 6.88" (175) DIA.
7.5 HP
40% 50%
60%
60%
62%
15 HP
6.13" (156) DIA. 63%
50
6.88" (175) DIA.
10
20
30
70
5.75" (146) DIA.
10 HP
55%
30%
6.38" (162) DIA.
6.63" (168) DIA.
58%
62%
58%
403020100
Maximum Priming Capability is 25' (7.6 m), based on minimum length of 2" (51)
Suction Line, 68º F (20º C) Water at Sea Level, 6.88" (175) DIA. MODEL: 2P4
SIZE: 2" (51)
LIQUID: SP. GR. 1.0
SPEED: 2850 RPM
IMP. DIA.: AS SHOWN
CAPACITY IN U.S. GPM
TOTAL
HEAD IN
CAPACITY IN CUBIC METERS PER HOUR
6050
050 100 150 200 250 300 350
100
150
200
40
50
60
METERS
FEET
0
5
10
0
10
20
30
IN METERS
NPSHR
IN FEET
NPSHR - 5.75" (146) DIA.
NPSHR - 6.88" (175) DIA.
7.5 BHP
40% 50% 60%
60%
65%
9 BHP
5 BHP
6.63" (168) DIA.
6.13" (156) DIA.
6.38" (162) DIA. 65%
50
6.88" (175) DIA.
10
20
30
5.75" (146) DIA.
55%
0
55%
0

PAGE 12
Commercial Water
Goulds Water Technology
Prime Line® Performance Curves – Size 3P1, 60 Hz
Ordering Standard Imp.
Code HP Rating Dia.➀
A 5* 8.75
(222)
B 5* 8.50
(216)
C 5 8.25
(210)
D 5 8.00
(203)
E 5 7.75
(197)
* Requires service factor.
➀ Impeller diameter in inches
and millimeters (mm).
Prime Line® Performance Curves – Size 3P1, 50 Hz
Ordering Standard Imp.
Code HP Rating Dia.➀
A 5 8.75
(222)
B 3* 8.50
(216)
C 3 8.25
(210)
D 3 8.00
(203)
E 3 7.75
(197)
* Requires service factor.
➀ Impeller diameter in
inches and millimeters
(mm).
403020100
Maximum Priming Capability is 25' (7.6 m), based on minimum length of 3" (76)
Suction Line, 68º F (20º C) Water at Sea Level, 8.75" (222) DIA. MODEL: 3P1
SIZE: 3" (76)
LIQUID: SP. GR. 1.0
SPEED: 1750 RPM
IMP. DIA.: AS SHOWN
CAPACITY IN U.S. GPM
TOTAL
HEAD IN
CAPACITY IN CUBIC METERS PER HOUR
6050
04080 120 160 200 240 280
30
40
50
20
METERS
FEET
NPSHR - 7.75" (197) DIA.
NPSHR - 8.75" (222) DIA.
40%
50%
60%
60%
55%
3 HP
5 HP
8.50" (216) DIA.
8.25" (210) DIA.
20
8.75" (222) DIA.
8
12
16
62%
0
64%
4320 360
8070
55%
7.75" (197) DIA.
8.00" (203) DIA.
60
70
0
5
10
0
10
20
30
IN METERS
NPSHR
IN FEET
64%
62%
65%
40%
50%
403020100
Maximum Priming Capability is 20' (6.1 m), based on minimum length of 3" (76)
Suction Line, 68º F (20º C) Water at Sea Level, 8.75" (222) DIA. MODEL: 3P1
SIZE: 3" (76)
LIQUID: SP. GR. 1.0
SPEED: 1450 RPM
IMP. DIA.: AS SHOWN
CAPACITY IN U.S. GPM
TOTAL
HEAD IN
CAPACITY IN CUBIC METERS PER HOUR
6050
04080 120 160 200 240 280
30
40
50
16
METERS
FEET
NPSHR - 7.75" (197) DIA.
NPSHR - 8.75" (222) DIA.
40% 50% 60%
60%
65%
3 BHP
65%
20
4
8
12
0
70%
0320 360
8070
73%
70%
55%
2 BHP
10
0
5
10
0
10
20
30
IN METERS
NPSHR
IN FEET
1.5 BHP
3.5 BHP
7.75" (197) DIA.
8.00" (203) DIA.
8.25" (210) DIA.
8.50" (216) DIA.
8.75" (222) DIA.

PAGE 13
Commercial Water
Goulds Water Technology
Prime Line® Performance Curves – Size 3P2, 60 Hz
Ordering Standard Imp.
Code HP Rating Dia.➀
A 10* 5.88
(149)
B 10 5.50
(140)
C 71⁄2
5.13
(130)
D 5* 4.75
(121)
* Requires service factor.
➀ Impeller diameter in
inches and millimeters
(mm).
Prime Line® Performance Curves – Size 3P2, 50 Hz
Ordering Standard Imp.
Code HP Rating Dia.➀
A 71⁄2
5.88
(149)
B 5 5.50
(140)
C 5 5.13
(130)
D 3* 4.75
(121)
* Requires service factor.
➀ Impeller diameter in
inches and millimeters
(mm).
40200
Maximum Priming Capability is 25' (7.6 m), based on minimum length of 3" (76)
Suction Line, 68º F (20º C) Water at Sea Level, 5.88" (149) DIA. MODEL: 3P2
SIZE: 3" (76)
LIQUID: SP. GR. 1.0
SPEED: 3450 RPM
IMP. DIA.: AS SHOWN
CAPACITY IN U.S. GPM
TOTAL
HEAD IN
CAPACITY IN CUBIC METERS PER HOUR
60
050 150 200 250 300
80
100
120
40
METERS
FEET
NPSHR - 4.75" (121) DIA.
NPSHR - 5.88" (149) DIA.
40%
50%
60%
60%
10 HP
60
10
20
30
20
62%
400 450
80
40
0
5
10
0
10
20
30
IN METERS
NPSHR
IN FEET
7.5 HP
4.75" (121) DIA.
5.13" (130) DIA.
5.50" (140) DIA.
5.88" (149) DIA.
55%
100 350 500
0
62%
63%
55%
50%
40%
100
403020100
Maximum Priming Capability is 25' (7.6 m), based on minimum length of 3" (76)
Suction Line, 68º F (20º C) Water at Sea Level, 5.88" (149) DIA. MODEL: 3P2
SIZE: 3" (76)
LIQUID: SP. GR. 1.0
SPEED: 2850 RPM
IMP. DIA.: AS SHOWN
CAPACITY IN U.S. GPM
TOTAL
HEAD IN
CAPACITY IN CUBIC METERS PER HOUR
6050
04080 120 160 200 240 280
80
100
METERS
FEET
NPSHR - 4.75" (121) DIA. NPSHR - 5.88" (149) DIA.
40% 50% 60%
60%
65%
65%
60
10
20
30
20
320 360
8070
70%
55%
3 BHP
40
0
5
10
0
10
20
30
IN METERS
NPSHR
IN FEET
5 BHP
4.75" (121) DIA.
5.13" (130) DIA.
5.50" (140) DIA.
5.88" (149) DIA.
7 BHP
70%
72%
72%
00
50%

PAGE 14
Commercial Water
Goulds Water Technology
Prime Line® Performance Curves – Size 3P3, 60 Hz, 3500 RPM
Ordering Standard Imp.
Code HP Rating Dia.➀
A 40 8.06
(205)
B 40 7.69
(195)
C 30 7.31
(186)
D 25 6.94
(176)
➀ Impeller diameter in
inches and millimeters
(mm).
Prime Line® Performance Curves – Size 3P3, 50 Hz
Ordering Standard Imp.
Code HP Rating Dia.➀
A 25 8.06
(205)
B 25 7.69
(195)
C 20 7.31
(186)
D 15 6.94
(176)
➀ Impeller diameter in
inches and millimeters
(mm).
806040200
Maximum Priming Capability is 25' (7.6 m), based on minimum length of 3" (76)
Suction Line, 68º F (20º C) Water at Sea Level, 8.06" (205) DIA. MODEL: 3P3
SIZE: 3" (76)
LIQUID: SP. GR. 1.0
SPEED: 3450 RPM
IMP. DIA.: AS SHOWN
CAPACITY IN U.S. GPM
TOTAL
HEAD IN
CAPACITY IN CUBIC METERS PER HOUR
120100
0 100 200 300 400 500 600 700
240
280
METERS
FEET
NPSHR - 6.94" (176) DIA.
NPSHR - 8.06" (205) DIA.
40% 50%
60%
200
30
40
50
120
64%
30 BHP
160
25 BHP
6.94" (176) DIA.
7.31" (186) DIA.
7.69" (195) DIA.
8.06" (205) DIA.
40 BHP
62%
62%
80
60
70
80 30%
55%
20 BHP
15 BHP
0
5
10
0
10
20
30
IN METERS
NPSHR
IN FEET
806040200
Maximum Priming Capability is 25' (7.6 m), based on minimum length of 3" (76)
Suction Line, 68º F (20º C) Water at Sea Level, 8.06" (205) DIA. MODEL: 3P3
SIZE: 3" (76)
LIQUID: SP. GR. 1.0
SPEED: 2850 RPM
IMP. DIA.: AS SHOWN
CAPACITY IN U.S. GPM
TOTAL
HEAD IN
CAPACITY IN CUBIC METERS PER HOUR
120100
0 100 200 300 400 500 600 700
200
METERS
FEET
NPSHR - 6.94" (176) DIA.
NPSHR - 8.06" (205) DIA.
40% 50%
60%
150
10
20
30
50
64%
15 BHP
100
25 BHP
20 BHP
62%
62%
0
40
50
60
30%
55%
10 BHP
0
5
10
0
10
20
30
IN METERS
NPSHR
IN FEET
0
60%
6.94" (176) DIA.
7.31" (186) DIA.
7.69" (195) DIA.
8.06" (205) DIA.

PAGE 15
Commercial Water
Goulds Water Technology
Prime Line® Performance Curves – Size 3P3, 60 Hz, 1750 RPM
Ordering Standard Imp.
Code HP Rating Dia.➀
A 71⁄2
8.06
(205)
B 71⁄2
7.69
(195)
C 5 7.31
(186)
D 5 6.94
(176)
➀ Impeller diameter in
inches and millimeters
(mm).
Prime Line® Performance Curves – Size 3P4, 60 Hz, 3450 RPM
Ordering Standard Imp.
Code HP Rating Dia.➀
A 25 7.00
(178)
B 20 6.75
(171)
C 20 6.50
(165)
D 15 6.25
(158)
E 15 6.00
(151)
➀ Impeller diameter in
inches and millimeters
(mm).
806040200
Maximum Priming Capability is 25' (7.6 m), based on minimum length of 3" (76)
Suction Line, 68º F (20º C) Water at Sea Level, 8.06" (205) DIA. MODEL: 3P3
SIZE: 3" (76)
LIQUID: SP. GR. 1.0
SPEED: 1750 RPM
IMP. DIA.: AS SHOWN
CAPACITY IN U.S. GPM
TOTAL
HEAD IN
CAPACITY IN CUBIC METERS PER HOUR
120100
0 100 200 300 400 500 600 700
80
METERS
FEET
NPSHR - 6.94" (176) DIA.
NPSHR - 8.06" (205) DIA.
40%
50% 60%
60
10
20
20
67%
5 BHP
40
7 BHP
65%
65%
0
55%
3 BHP
0
5
10
0
10
20
30
IN METERS
NPSHR
IN FEET
0
60%
6.94" (176) DIA.
7.31" (186) DIA.
7.69" (195) DIA.
8.06" (205) DIA.
100
30
67%
55%
806040200
Maximum Priming Capability is 25' (7.6 m), based on minimum length of 3" (76)
Suction Line, 68º F (20º C) Water at Sea Level, 7.00" (178) DIA. MODEL: 3P4
SIZE: 3" (76)
LIQUID: SP. GR. 1.0
SPEED: 3450 RPM
IMP. DIA.: AS SHOWN
CAPACITY IN U.S. GPM
TOTAL
HEAD IN
CAPACITY IN CUBIC METERS PER HOUR
100
0 100 200 300 400 500
150
METERS
FEET
NPSHR - 6.00" (151) DIA.
NPSHR - 7.00" (178) DIA.
40%
50%
60%
10
20
50
20 HP
100
61%
0
55%
0
5
10
0
10
20
30
IN METERS
NPSHR
IN FEET
0
60%
6.25" (158) DIA.
6.50" (165) DIA.
6.75" (171) DIA.
7.00" (178) DIA.
200
30 55%
60
40
50
6.00" (151) DIA.
15 HP
50%
58%
45%
61%
58%
45%

PAGE 16
Commercial Water
Goulds Water Technology
Prime Line® Performance Curves – Size 3P4, 50 Hz, 2850 RPM
Ordering Standard Imp.
Code HP Rating Dia.➀
A 15 7.00
(178)
B 15 6.75
(171)
C 10 6.50
(165)
D 10 6.25
(158)
E 71⁄2* 6.00
(151)
* Requires service factor.
➀ Impeller diameter in inches
and millimeters (mm).
Prime Line® Performance Curves – Size 3P4, 60 Hz, 1750 RPM
Ordering Standard Imp.
Code HP Rating Dia.➀
A 5 7.00
(178)
B 3 6.75
(171)
C 3 6.50
(165)
D 3 6.25
(158)
E 2* 6.00
(151)
* Requires service factor.
➀ Impeller diameter in
inches and millimeters
(mm).
806040200
Maximum Priming Capability is 25' (7.6 m), based on minimum length of 3" (76)
Suction Line, 68º F (20º C) Water at Sea Level, 7.00" (178) DIA. MODEL: 3P4
SIZE: 3" (76)
LIQUID: SP. GR. 1.0
SPEED: 2850 RPM
IMP. DIA.: AS SHOWN
CAPACITY IN U.S. GPM
TOTAL
HEAD IN
CAPACITY IN CUBIC METERS PER HOUR
120100
080 160 240 320 400 480 560
80
METERS
FEET
NPSHR - 6.00" (151) DIA.
NPSHR - 7.00" (178) DIA.
40%
50%
60%
10
20
40
60
13 BHP
65%
45%
20
55%
10 BHP
0
5
10
0
10
20
30
IN METERS
NPSHR
IN FEET
60%
120
30
55%
7.5 BHP
40%
50%
100
640 720
7.00" (178) DIA.
6.75" (171) DIA.
6.50" (165) DIA.
6.25" (158) DIA.
6.00" (151) DIA.
403020100
Maximum Priming Capability is 22' (6.7 m), based on minimum length of 3" (76)
Suction Line, 68º F (20º C) Water at Sea Level, 7.00" (178) DIA. MODEL: 3P4
SIZE: 3" (76)
LIQUID: SP. GR. 1.0
SPEED: 1750 RPM
IMP. DIA.: AS SHOWN
CAPACITY IN U.S. GPM
TOTAL
HEAD IN
CAPACITY IN CUBIC METERS PER HOUR
6050
04080 120 160 200 240 280
30
METERS
FEET
NPSHR - 6.00" (151) DIA.
NPSHR - 7.00" (178) DIA.
40%
50%
60%
4
8
10
20
3.5 BHP
45%
0
55%
3 BHP
0
5
10
0
10
20
30
IN METERS
NPSHR
IN FEET
50
12
55%
2 BHP
50%
40
320 360
6.75" (171) DIA.
6.50" (165) DIA.
6.25" (158) DIA.
6.00" (151) DIA.
NPSHR - 6.50" (165) DIA.
7.00" (178) DIA.
0
16
70

PAGE 17
Commercial Water
Goulds Water Technology
Prime Line® Performance Curves – Size 4P1, 60 Hz, 1750 RPM
Ordering Standard Imp.
Code HP Rating Dia.➀
A 20 10.63
(270)
B 20 10.38
(264)
C 20 10.13
(257)
D 15* 9.88
(251)
* Requires service factor.
➀ Impeller diameter in
inches and millimeters
(mm).
Prime Line® Performance Curves – Size 4P1, 50 Hz, 1450 RPM
Ordering Standard Imp.
Code HP Rating Dia.➀
A 15 10.63
(270)
B 15 10.38
(264)
C 10* 10.13
(257)
D 10 9.88
(251)
* Requires service factor.
➀ Impeller diameter in
inches and millimeters
(mm).
1007550250
Maximum Priming Capability is 25' (7.6 m), based on minimum length of 4" (102)
Suction Line, 68º F (20º C) Water at Sea Level, 10.63" (270) DIA. MODEL: 4P1
SIZE: 4" (102)
LIQUID: SP. GR. 1.0
SPEED: 1750 RPM
IMP. DIA.: AS SHOWN
CAPACITY IN U.S. GPM
TOTAL
HEAD IN
CAPACITY IN CUBIC METERS PER HOUR
150125
0 100 200 300 400 500 600 700
80
METERS
FEET
40% 50%
60%
10
20
40
60
20
55%
15 BHP
0
5
10
0
10
20
30
IN METERS
NPSHR
IN FEET
120
30
10 HP
100
800 900
10.38" (264) DIA.
10.13" (257) DIA.
9.88" (251) DIA.
10.63" (270) DIA.
175
63%
60%
66%
66%
68%
68%
63%
55%
50%
40%
NPSHR - 9.88" (251) DIA.
NPSHR - 10.63" (270) DIA.
806040200
Maximum Priming Capability is 22' (6.7 m), based on minimum length of 4" (102)
Suction Line, 68º F (20º C) Water at Sea Level, 10.63" (270) DIA. MODEL: 4P1
SIZE: 4" (102)
LIQUID: SP. GR. 1.0
SPEED: 1450 RPM
IMP. DIA.: AS SHOWN
CAPACITY IN U.S. GPM
TOTAL
HEAD IN
CAPACITY IN CUBIC METERS PER HOUR
120100
0 100 200 300 400 500 600 700
60
METERS
FEET
40% 50%
60%
10
14
40
50
30
55%
10 BHP
0
5
10
0
10
20
30
IN METERS
NPSHR
IN FEET
80
18 5 BHP
70
140
65%
70%
72%
60%
65%
70%
72%
NPSHR - 9.88" (251) DIA.
NPSHR - 10.63" (270) DIA.
68%
68%
12
16
20
24
22
9.88" (251) DIA.
10.13" (257) DIA.
10.38" (264) DIA.
10.63" (270) DIA.
12 BHP
7.5 BHP

PAGE 18
Commercial Water
Goulds Water Technology
Prime Line® Performance Curves – Size 4P1, 60 Hz, 1150 RPM
Ordering Standard Imp.
Code HP Rating Dia.➀
A 71⁄2
10.63
(270)
B 71⁄2
10.38
(264)
C 71⁄2
10.13
(257)
D 5 9.88
(251)
➀ Impeller diameter in
inches and millimeters
(mm).
Prime Line® Performance Curves – Size 4P2, 60 Hz, 1750 RPM
Ordering Standard Imp.
Code HP Rating Dia.➀
A 10* 9.00
(229)
B 10 8.75
(222)
C 10 8.50
(216)
D 71⁄2* 8.25
(210)
* Requires service factor.
➀ Impeller diameter in
inches and millimeters
(mm).
806040200
Maximum Priming Capability is 16' (4.9 m), based on minimum length of 4" (102)
Suction Line, 68º F (20º C) Water at Sea Level, 10.63" (270) DIA. MODEL: 4P1
SIZE: 4" (102)
LIQUID: SP. GR. 1.0
SPEED: 1150 RPM
IMP. DIA.: AS SHOWN
CAPACITY IN U.S. GPM
TOTAL
HEAD IN
CAPACITY IN CUBIC METERS PER HOUR
120100
0 100 200 300 400 500 600 700
30
METERS
FEET
40% 50%
60%
2
6
10
20
0
55%
5 BHP
0
5
10
0
10
20
30
IN METERS
NPSHR
IN FEET
50
10 3 BHP
40
140
65%
70% 72%
60%
65%
70%
72%
NPSHR - 9.88" (251) DIA.
NPSHR - 10.63" (270) DIA.
68%
68%
4
8
12
16
14
9.88" (251) DIA.
10.13" (257) DIA.
10.38" (264) DIA.
10.63" (270) DIA.
55%
7 BHP
806040200
Maximum Priming Capability is 22' (6.7 m), based on minimum length of 4" (102)
Suction Line, 68º F (20º C) Water at Sea Level, 9.00" (229) DIA. MODEL: 4P2
SIZE: 4" (102)
LIQUID: SP. GR. 1.0
SPEED: 1750 RPM
IMP. DIA.: AS SHOWN
CAPACITY IN U.S. GPM
TOTAL
HEAD IN
CAPACITY IN CUBIC METERS PER HOUR
120100
0 100 200 300 400 500 600 700
75
METERS
FEET
40% 50%
62%
0
25
50
0
54%
7.5 HP
0
5
10
0
10
20
30
IN METERS
NPSHR
IN FEET
15
100
140
64%65%
65%
58%
5
10
20
25
8.25" (210) DIA.
8.50" (216) DIA.
8.75" (222) DIA.
9.00" (229) DIA.
10 BHP
160
45%
64%
62%
58%
54%
50%
45%
NPSHR - 8.25" (210) DIA.
NPSHR - 9.00" (229) DIA.

PAGE 19
Commercial Water
Goulds Water Technology
Prime Line® Performance Curves – Size 4P2, 50 Hz, 1450 RPM
Ordering Standard Imp.
Code HP Rating Dia.➀
A 71⁄2
9.00
(229)
B 71⁄2
8.75
(222)
C 5 8.50
(216)
D 5 8.25
(210)
➀ Impeller diameter in
inches and millimeters
(mm).
Prime Line® Performance Curves – Size 4P2, 60 Hz, 1150 RPM
Ordering Standard Imp.
Code HP Rating Dia.➀
A 3 9.00
(229)
B 3 8.75
(222)
C 3 8.50
(216)
D 3 8.25
(210)
➀ Impeller diameter in
inches and millimeters
(mm).
806040200
Maximum Priming Capability is 17' (5.2 m), based on minimum length of 4" (102)
Suction Line, 68º F (20º C) Water at Sea Level, 9.00" (229) DIA. MODEL: 4P2
SIZE: 4" (102)
LIQUID: SP. GR. 1.0
SPEED: 1450 RPM
IMP. DIA.: AS SHOWN
CAPACITY IN U.S. GPM
TOTAL
HEAD IN
CAPACITY IN CUBIC METERS PER HOUR
120100
0 100 200 300 400 500 600 700
40
METERS
FEET
40%
50%
60%
4
20
30
10
55%
4 BHP
0
5
10
0
10
20
30
IN METERS
NPSHR
IN FEET
10
5 BHP
60
140
65%
70%
60%
65%
70%
NPSHR
68%
68%
6
8
12
18
55%
6 BHP
160
14
16
9.00" (229) DIA.
8.75" (222) DIA.
8.50" (216) DIA.
8.25" (210) DIA.
50
806040200
Maximum Priming Capability is 11' (3.4 m), based on minimum length of 4" (102)
Suction Line, 68º F (20º C) Water at Sea Level, 9.00" (229) DIA. MODEL: 4P2
SIZE: 4" (102)
LIQUID: SP. GR. 1.0
SPEED: 1150 RPM
IMP. DIA.: AS SHOWN
CAPACITY IN U.S. GPM
TOTAL
HEAD IN
CAPACITY IN CUBIC METERS PER HOUR
120100
0 100 200 300 400 500 600 700
40
METERS
FEET
40% 50%
60%
0
20
30
10
55%
2 BHP
0
5
10
0
10
20
30
IN METERS
NPSHR
IN FEET
6
0
140
65%
60%
65%
NPSHR
68%
68%
2
4
8
14
55%
3 BHP
160
10
12
9.00" (229) DIA.
8.75" (222) DIA.
8.50" (216) DIA.
8.25" (210) DIA.
50

PAGE 20
Commercial Water
Goulds Water Technology
806040200
Maximum Priming Capability is 25' (7.6 m), based on minimum length of 4" (102)
Suction Line, 68º F (20º C) Water at Sea Level. MODEL: 4E1
SIZE: 4" (102)
LIQUID: SP. GR. 1.0
SPEED: 1750 RPM
IMP. DIA.: AS SHOWN
CAPACITY IN U.S. GPM
TOTAL
HEAD IN
CAPACITY IN CUBIC METERS PER HOUR
120100
0 100 200 300 400 500 600 700
METERS
FEET
40% 50% 60%
0
100
150
50
10 BHP
0
5
10
0
10
20
30
IN METERS
NPSHR
IN FEET
0
140
65%
60%
65%
10
20
50%
30 BHP
160
30
200
800 900
40
50
60
180 200
NPSHR - 12" (305) DIA.
NPSHR - 10" (254) DIA.
25 BHP
20 BHP
15 BHP
12.00" (305) DIA.
11.50" (292) DIA.
11.00" (279) DIA.
10.50" (267) DIA.
10.00" (254) DIA.
30%
70%
70%
403020100
Maximum Priming Capability is 15' (4.5 m), based on minimum length of 4" (102)
Suction Line, 68º F (20º C) Water at Sea Level.
MODEL: 4E1
SIZE: 4" (102)
LIQUID: SP. GR. 1.0
SPEED: 1450 RPM
IMP. DIA.: 12" (305)
U.S. GPM
TOTAL
HEAD IN
M3/H
6050
0 100 200 300 400 500 600 700
METERS
FEET
15
20
10
0
10
20
0
10
5
NPSHR
Required
5
70
EFF%
80
15 50
20
25
30
90 100
NPSH Required
BHP
HQ
120110 140130 150 160
60
70
80
90
100
BHP
EFF%
0
10
20
30
40
50
60
70
30
Ft. M
Maximum Priming
Capability is:
Ordering Imp. Max.
Code Dia. Lift
A 12.0" 25'
(305) (7.6 m)
B 11.5" 22'
(292) (6.7 m)
C 11.0" 19'
(279) (5.8 m)
D 10.5" 17'
(267) (5.2 m)
E 10.0" 16'
(254) (4.9 m)
Prime Line® Performance Curves – Size 4E1, 60 Hz, 1750 RPM
Prime Line® Performance Curves – Size 4E1, 50 Hz, 1450 RPM

PAGE 21
Commercial Water
Goulds Water Technology
403020100
Maximum Priming Capability is 13' (3.9 m), based on minimum length of 4" (102)
Suction Line, 68º F (20º C) Water at Sea Level.
MODEL: 4E1
SIZE: 4" (102)
LIQUID: SP. GR. 1.0
SPEED: 1150 RPM
IMP. DIA.: 12" (305)
U.S. GPM
TOTAL
HEAD IN
M3/H
6050
0 100 200 300 400 500 600 700
METERS
FEET
6
8
4
0
10
20
0
10
5
NPSHR
Required
2
70
EFF%
80
0
10
5
10
15
90 100
NPSH Required
BHP
HQ
120110 140130 150 160
20
30
40
50
60
BHP
EFF%
0
10
20
30
40
50
60
70
30
Ft. M
Prime Line® Performance Curves – Size 4E1, 60 Hz, 1150 RPM

PAGE 22
Commercial Water
Goulds Water Technology
Prime Line® Performance Curves – Size 6E1, 60 Hz, 1750 RPM
Maximum Priming
Capability is:
Ordering Imp. Max.
Code Dia. Lift
A 11.5" 22'
(292) (6.7 m)
B 11.0" 20'
(279) (6.1 m)
C 10.5" 16'
(267) (4.8 m)
D 10.0" 16'
(254) (4.8 m)
E 9.5" 15'
(241) (4.5 m)
Prime Line® Performance Curves – Size 6E1, 50 Hz, 1450 RPM
4003002001000
Maximum Priming Capability is 22' (6.7 m), based on minimum length of 6" (152)
Suction Line, 68º F (20º C) Water at Sea Level. MODEL: 6E1
SIZE: 6" (152)
LIQUID: SP. GR. 1.0
SPEED: 1750 RPM
IMP. DIA.: AS SHOWN
CAPACITY IN U.S. GPM
TOTAL
HEAD IN
CAPACITY IN CUBIC METERS PER HOUR
600500
0 400 800 1200 1600 2000 2400 2800
METERS
FEET
40%50%
60%
0
80
120
40 20 BHP
0
5
10
0
10
20
30
IN METERS
NPSHR
IN FEET
0
700
65%
60%
65%
10
20
50%
30 BHP
800
30
160
3200 3600
40
NPSHR - 9.5" (241) DIA.
NPSHR - 11.5" (292) DIA.
25 BHP 40 BHP
50 BHP
11.50" (292) DIA.
30%
70%
70%
0
9.50" (241) DIA.
10.00" (254) DIA.
10.50" (267) DIA.
11.00" (279) DIA.
4003002001000
Maximum Priming Capability is 20' (6.1 m), based on minimum length of 6" (152)
Suction Line, 68º F (20º C) Water at Sea Level. MODEL: 6E1
SIZE: 6" (152)
LIQUID: SP. GR. 1.0
SPEED: 1450 RPM
IMP. DIA.: AS SHOWN
CAPACITY IN U.S. GPM
TOTAL
HEAD IN
CAPACITY IN CUBIC METERS PER HOUR
600500
0 400 800 1200 1600 2000 2400 2800
METERS
FEET
40% 50%
60%
0
40
60
20 20 BHP
0
5
10
0
10
20
30
IN METERS
NPSHR
IN FEET
0
700
65%
60%
65%
5
10
15 BHP
800
15
80
3200 3600
20
NPSHR - 9.5" (241) DIA.
NPSHR - 11.5" (292) DIA.
25 BHP
10 BHP
26.5 BHP
11.50" (292) DIA.
11.00" (279) DIA.
10.50" (267) DIA.
10.00" (254) DIA.
30%
70%
70%
9.50" (241) DIA.
0
25
Maximum Priming
Capability is:
Ordering Imp. Max.
Code Dia. Lift
A 11.5" 20'
(292) (6.1 m)
B 11.0" 17'
(279) (5.2 m)
C 10.5" 14'
(267) (4.2 m)
D 10.0" 14'
(254) (4.2 m)
E 9.5" 13'
(241) (3.9 m)

PAGE 23
Commercial Water
Goulds Water Technology
Prime Line® Performance Curves – Size 6E1, 60 Hz, 1150 RPM
200150100500
Maximum Priming Capability is 16' (4.9 m), based on minimum length of 6" (152)
Suction Line, 68º F (20º C) Water at Sea Level. MODEL: 6E1
SIZE: 6" (152)
LIQUID: SP. GR. 1.0
SPEED: 1150 RPM
IMP. DIA.: AS SHOWN
CAPACITY IN U.S. GPM
TOTAL
HEAD IN
CAPACITY IN CUBIC METERS PER HOUR
300250
0 200 400 600 800 1000 1200 1400
METERS
FEET
40% 50% 60%
0
30
40
20
7.5 BHP
0
5
10
0
10
20
30
IN METERS
NPSHR
IN FEET
0
350
65%
68%
65%
4
8
5 BHP
400
12
50
1600 1800
16
NPSHR - 9.5" (241) DIA.
NPSHR - 11.5" (292) DIA.
10 BHP
10 BHP
15 BHP
11.00" (279) DIA.
10.50" (267) DIA.
10.00" (254) DIA.
20%
70%
70%
10
68%
9.50" (241) DIA.
11.50" (292) DIA.
30%
Maximum Priming
Capability is:
Ordering Imp. Max.
Code Dia. Lift
A 11.5" 16'
(292) (4.9 m)
B 11.0" 13'
(279) (3.9 m)
C 10.5" 11'
(267) (3.3 m)
D 10.0" 11'
(254) (3.3 m)
E 9.5" 10'
(241) (3.0 m)

PAGE 24
Commercial Water
Goulds Water Technology
Prime Line® Performance Curves – Size 6E2, 60 Hz, 1750 RPM
Maximum Priming
Capability is:
Ordering Imp. Max.
Code Dia. Lift
A 12.5" 22'
(318) (6.7 m)
B 12.0" 18'
(305) (5.5 m)
C 11.5" 14'
(292) (4.3 m)
D 11.0" 10'
(279) (3.0 m)
Prime Line® Performance Curves – Size 6E2, 50 Hz, 1450 RPM
0
Maximum Priming Capability is 22' (6.7 m), based on minimum length of 6" (152)
Suction Line, 68º F (20º C) Water at Sea Level. MODEL: 6E2
SIZE: 6" (152)
LIQUID: SP. GR. 1.0
SPEED: 1750 RPM
IMP. DIA.: AS SHOWN
U.S. GPM
TOTAL
HEAD IN
M3/H
50
0 200 400 600 800 1000 1200 1400
METERS
FEET
0
0
10
0
60
40
NPSH
Required
0
60
10
20
30
100 200150 300
80
100
120
140
160
M Ft.
40
20
250 350
20
40
40% 50%
60%
20 BHP
60%
65%
50%
30 BHP
NPSHR - 11.00" (279) DIA.
25 BHP
40 BHP
12.50" (318) DIA.
12.00" (305) DIA.
11.50" (292) DIA.
11.00" (279) DIA.
67%
NPSHR - 12.60" (318) DIA.
40%
55%
67%
65%
55%
200150100500
Maximum Priming Capability is 19' (5.8 m), based on minimum length of 6" (152)
Suction Line, 68º F (20º C) Water at Sea Level. MODEL: 6E2
SIZE: 6" (152)
LIQUID: SP. GR. 1.0
SPEED: 1450 RPM
IMP. DIA.: AS SHOWN
CAPACITY IN U.S. GPM
TOTAL
HEAD IN
CAPACITY IN CUBIC METERS PER HOUR
300250
0 200 400 600 800 1000 1200 1400
METERS
FEET
40% 50%
60%
0
40
60
20
20 BHP
0
5
10
0
10
20
30
IN METERS
NPSHR
IN FEET
350
65%
60%
65%
5
10
15 BHP
400
15
80
1600 1800
20
NPSHR - 11.00" (279) DIA.
NPSHR - 12.5" (318) DIA.
22 BHP
70%
70%
0
25
50%
40%
12.50" (318) DIA.
12.00" (305) DIA.
11.50" (292) DIA.
11.00" (279) DIA.
Maximum Priming
Capability is:
Ordering Imp. Max.
Code Dia. Lift
A 12.5" 19'
(318) (5.8 m)
B 12.0" 15'
(305) (4.5 m)
C 11.5" 12'
(292) (3.6 m)
D 11.0" 9'
(279) (2.7 m)

PAGE 25
Commercial Water
Goulds Water Technology
Prime Line® Performance Curves – Size 6E2, 60 Hz, 1150 RPM
200150100500
Maximum Priming Capability is 14' (4.2 m), based on minimum length of 6" (152)
Suction Line, 68º F (20º C) Water at Sea Level. MODEL: 6E2
SIZE: 6" (152)
LIQUID: SP. GR. 1.0
SPEED: 1150 RPM
IMP. DIA.: AS SHOWN
CAPACITY IN U.S. GPM
TOTAL
HEAD IN
CAPACITY IN CUBIC METERS PER HOUR
300250
0 200 400 600 800 1000 1200 1400
METERS
FEET
40% 50%
60%
0
40
60
20
10 BHP
0
5
10
0
10
20
30
IN METERS
NPSHR
IN FEET
350
55%
60%
5
10 7.5 BHP
400
15
80
1600 1800
20
NPSHR - 11.00" (279) DIA.
NPSHR - 12.5" (318) DIA.
12 BHP
0
25
50%
40%
12.50" (318) DIA.
12.00" (305) DIA.
11.50" (292) DIA.
11.00" (279) DIA.
55%
Maximum Priming
Capability is:
Ordering Imp. Max.
Code Dia. Lift
A 12.5" 14'
(318) (4.2 m)
B 12.0" 10'
(305) (3.0 m)
C 11.5" 9'
(292) (2.7 m)
D 11.0" 8'
(279) (2.4 m)

PAGE 26
Commercial Water
Goulds Water Technology
C
L
C
L
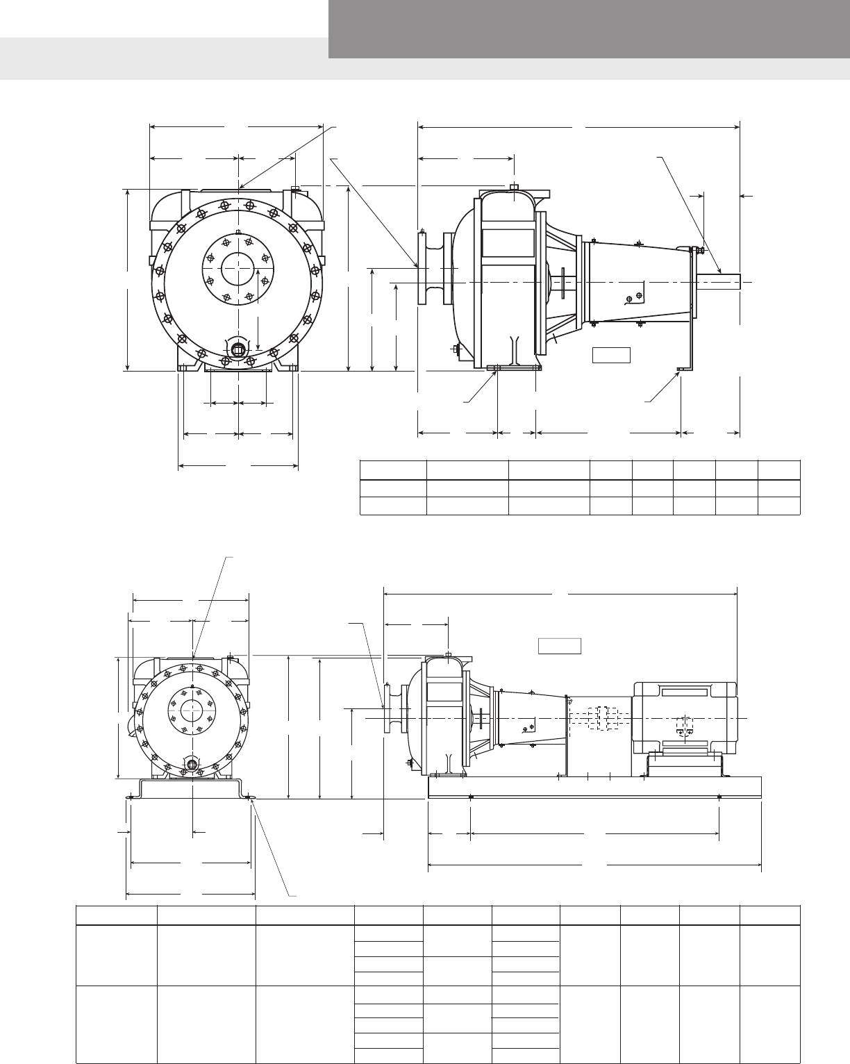
Prime Line® Dimensions — 2P – 4P Pump End
Pump End
Model Suction➀ Discharge➀ A B C D E F H I J K L M N P Q R S U V W
2P1 2" NPT 2" NPT
2P2 Female Female 121⁄4 6
1⁄8 23½ 815⁄16 17 137⁄8 6
1⁄4 55⁄8 117⁄16 179⁄16
2P3 (51) (51) (311) (156) (597) (227) (432) (253) (159) (143) (292) 63⁄8 3 11⁄8 1⁄4 x 1⁄8 (446)
2P4 4 8 10 (165) (76) (29) (6 x 3)
3P1 1 2 (102) (203) (254) 24¼ 115⁄16 1⁄2
3P2 3" 3" 151⁄2 73⁄4 (25) (51) (616) 91⁄8 19 151⁄2 8 69⁄16 (286) 1911⁄16 (13)
3P3 (76) (76) (391) (197) 327⁄8 (232) (483) (394) (203) (167) 185⁄8 (500)
3P4 (838) (464) 75⁄8 37⁄8 15⁄8 3⁄8 x 3⁄16
4P1 4" 4" 191⁄4 9
5⁄8 6
1⁄4 121⁄2 15 355⁄8 119⁄16 231⁄2 18 10 89⁄16 19½ (191) (101) (41) (10x5) 241⁄16
4P2 (102) (102) (489) (245) (159) (318) (381) (902) (294) (597) (457) (254) (217) (495) (611)
➀ 125# drilling except 2PL series (2" NPT female)
All dimensions are in inches and millimeters (mm). Do not use for construction purposes.
A
B
K
E
F
H
V
L
M
PQ
REF.
R
N
J
I
SUCTION➀
125# DRILLING DISCHARGE➀
125# DRILLING
9⁄16" DIA.
2 MTG SLOTS
“W” DIA.
2 MTG SLOTS
“S” DIA. SHAFT
“U” KEYWAY
D
C

PAGE 27
Commercial Water
Goulds Water Technology
Pump, Base, Coupling and Guard
Model Frame Suction Discharge Open Encl.
➀ ➀ A B E F G G H I ➁ J K L M N O P Q T V
143T
— 6
1⁄2 383⁄8 (972)
2P1 145T
(165)
2P2 182T 2" NPT 2" NPT 121⁄4 6
1⁄8 65⁄16 (160) 39 (991) 815⁄16 191⁄2 163⁄8 8
3⁄4 201⁄16
2P3 184T Female Female (311) (156)
(227) (495) (416) (222) (509)
2P4 213T (51) (51) 711⁄16 (195) 423⁄8 (1076)
215T
254T 71⁄2 15 8
15⁄16 (227) 17 46½ (1181) 45⁄8 26 42
145T (191) (381) — 6
1⁄2 (432) 38 (965) (118) (660) (1067)
(165)
3P1 182T 65⁄16 (160) 387⁄8 (987)
3P2 184T
213T
711⁄16 (195)
42¼ (1073)
215T
254T 815⁄16 (227) 46¼ (1175)
145T
— 6
1⁄2 47¾ (1213) 8 11⁄16
(165)
(203) (18)
182T 3" 3" 151⁄2 73⁄4 65⁄16 (160) 483⁄8 (1229) 91⁄8 211⁄2 18 101⁄2 32 48 223⁄16
184T (76) (76) (391) (197) (232) (546) (457) (267) (813) (1219) (564)
213T
711⁄16 (195)
51¾ (1315)
3P3 215T
4¾
3P4 254T
815⁄16 (227) 55 (1397)
(121)
256T 91⁄2 19 201⁄2
284T (241) (483) 111⁄2 117⁄8 (521) 60¼ (1530) 40 56
284TS (292) (302)
(1016) (1422)
286TS 58¾ (1492)
324TS 139⁄16 141⁄16 61¼ (1556)
(344) (357)
213T
711⁄16 (195) 54½ (1384)
32 48
4P1 215T 4" 4" 191⁄4 9
5⁄8
119⁄16 26 201⁄2 121⁄2 7½
(813) (1219) 269⁄16
4P2 254T (102) (102) (489) (245) 815⁄16 (227)
58½ (1486) (294) (660) (521) (318) (191) 40 56 (675)
256T
(1016) (1422)
Prime Line® Dimensions — 2P – 4P Frame Mounted
① 125# drilling except 2PL series (2" NPT female). All dimensions are in inches and millimeters (mm). Do not use for construction.
②
Actual dimension may vary depending on motor.
C
L
C
L
A
B
G
K
E
F
H
V
L
M
P
Q
O
N
J
I②
SUCTION①
125# DRILLING DISCHARGE①
125# DRILLING
“T” DIA. 4 MTG HOLES
3/8"

PAGE 28
Commercial Water
Goulds Water Technology
Close Coupled
Model Frame Suct. Disch.
With Pump – Motor Base
① ① A B C D E F G H I ➁ J K L M N P V W X Y Z E1 F1 H1 N1 W1 Y1 Z1
143JM 49⁄16 91⁄8 61⁄8 231⁄4 95⁄8
9⁄16x7⁄8 11 123⁄8
145JM
(116) (232) (156) (591)
(245) (14x22) 101⁄2 (279) (314) 65⁄8 131⁄4 143⁄4 8
5⁄8 9⁄16 15 23
182JM 3 6
615⁄16 275⁄16
95⁄16
7⁄16x11⁄16 (267) 101⁄2 111⁄2 (168) (337) (375) (219) (14) (381) (584)
184JM (76) (152) (176) (694) (236) (11x18) (267) (292)
2P1 213JP 2" NPT 2" NPT
331⁄4 51⁄2 73⁄8
2P2 Female Female 121⁄4 6
1⁄8 41⁄4 8
1⁄2 8
1⁄4 (845) 815⁄16 17 137⁄8 6
1⁄4 55⁄8 16 5⁄8 179⁄16 7⁄16 9
1⁄2 (140) (187)
2P3 215JP (51) (51) (311) (156) (108) (216) (210) 343⁄4 (227) (432) (353) (159) (143) (422) (446) (11) (241) 7 87⁄8
2P4 (883) (178) (226) 75⁄8 151⁄4 163⁄4 10 5⁄8 11⁄16 18 30
254JP
377⁄8
81⁄4 1011⁄16 (194) (387) (425) (270) (18) (457) (762)
5 10 915⁄16 (962)
171⁄8 17⁄32 113⁄8 (210) (271)
256JP
(127) (254) (252) 39 5⁄8
(435) (13) (289) 10 127⁄16
(1007) (254) (316)
143JM
61⁄8 241⁄16 91⁄2
145JM
(156) 10 (611) (241) 101⁄2 11 123⁄8 6
5⁄8 131⁄4 143⁄4 9
9⁄16 9⁄16 15 23
182JM 4 8 615⁄16 (254) 281⁄8 91⁄4
(267) (279) (314) (168) (337) (375) (243) (14) (381) (584)
184JM 49⁄16 9
1⁄8 (102) (203) (176) (715) (235)
213JP
(116) (232)
341⁄2
81⁄4 (876) 143⁄8 9⁄16x7⁄8 113⁄4 111⁄2 12 7⁄8 75⁄8 151⁄4 163⁄4 119⁄16 18 30
3P1 215JP
(210) 36
(365) (14x22) (298) (292) (327) (194) (387) (425) (294) (457) (762)
3P2 (914)
3P3 254JP 3" 3" 151⁄2 73⁄4
391⁄8 91⁄8 19 151⁄2 8 69⁄16 1911⁄16
3P4 (76) (76) (391) (197)
915⁄16 (994) (232) (483) (394) (203) (167) 141⁄4 (500) 131⁄2 1513⁄16 17 5⁄16
256JP
(252) 407⁄8
(362) (343) (402) (440)
51⁄2 11 (1038)
284JP
(140) (279)
413⁄8
91⁄2 121⁄4
1013⁄16 (1051) 177⁄16 17⁄32 127⁄8 (241) (311)
286JP
(275) 427⁄8
(443) (13) (327) 11 133⁄4
11⁄16
(1089) (279) (349) (18)
324JP
61⁄4 121⁄2 141⁄16
4311⁄16 1715⁄16 21⁄32 153⁄4 101⁄2 131⁄2 9
3⁄8 183⁄4 201⁄4 119⁄16 21 33
(159) (318) (357) (1110) (556) (17) (400) (267) (343) (238) (476) (527) (294) (533) (838)
213JP
375⁄16
49⁄16 9
1⁄8 81⁄4 (948) 151⁄4 113⁄4 111⁄2 127⁄8
215JP
(116) (232) (210)
3813⁄16
(387) (298) (292) (327)
4P1 4" 4" 191⁄4 9
5⁄8 61⁄4 121⁄2 15 (986) 119⁄16 231⁄2 18 10 89⁄16 241⁄16 9⁄16x7⁄8 13 9⁄16
4P2 254JP (102) (102) (489) (245) (159) (318) (381) 4115⁄16 (294) (597) (457) (254) (217) (611) (14x22) (344)
51⁄2 11 915⁄16 (1065) 151⁄16 131⁄2 1513⁄16 17 5⁄16
256JP
(140) (279) (252)
4311⁄16
(383) (343) (402) (440)
(1110)
① 125# drilling except 2PL series (2" NPT female). All dimensions are in inches and millimeters (mm). Do not use for construction purposes.
② Actual dimension may vary depending on motor.
C
LC
L
A
B
21⁄2" (64 mm)
K
E1
F1
H1
V
L
M
C
N
J
I②
SUCTION➀
125#
DRILLING
DISCHARGE➀
125# DRILLING
COMMON PUMP/MOTOR BASE
“OPTIONAL”
E
F
HPY
D
X
Z
G②
N1Y1
Z1
“W” DIA.
4 MTG
HOLES
“W1” DIA.
4 MTG HOLES
9⁄16"
(14 mm)
DIA. MTG
HOLES
Prime Line® Dimensions — 2P – 4P Close Coupled

PAGE 29
Commercial Water
Goulds Water Technology
Prime Line® Dimensions — 4E – 6E
22"
11" 71
/2"
K
97/16"
31
/2"3
1
/2"
7" 7"
153
/8"
N5"181
/4"
47144
713/
16"
Ref.
411/
16"
13/4" Dia. Shaft
3
/8" x 3/
16" K.S.
I
J
Discharge
125# Drilling
Suction
125# Drilling
2311
/16"
111
/8"
L
11/
16" Dia. (4) Mtg. Holes 9/16" Dia. (2) Mtg. Holes
22”
C**
K
46045 A
Discharge
125# Drilling
Suction
125# Drilling
2711/
16”K
L
I**
J
7/8” Dia. (4) Mtg. Holes
N8”
63”
241/2”
11”
223/
4”
113/8”47”
Pump, Base, Coupling and Motor
Model Suction Discharge I J K L N
4E 4 4 407/8 125/16 23 13 913/16
6E 6 6 445/16 15¾ 24½ 113/8 13¼
Model Suction Discharge Frame C** I** J K L N
254T 815/16 633/16
4E 4 4 256T 6315/16 125/16 27 17 85/16
284T 11½ 657/16
286T 6615/16
256T 815/16 673/8
284T 11½ 687/8
6E 6 6 286T 703/8 15¾ 28½ 153/8 11¾
324T 139/16 719/16
326T 731/16

PAGE 30
Commercial Water
Goulds Water Technology
Prime Line® Specications — 2P – 4P
2P1 2P2 2P3 2P4 3P1 3P2 3P3 3P4 4P1 4P2
Suction and discharge port sizes, inches (mm) 2 (51) NPT 3 (76) Flanged 4 (102) Flanged
Flanged, at face Female threaded connection 125 PSI (8.79 kg/cm2)
Minimum casing thickness, inches (mm) 3⁄8 (10)
Maximum working pressure 85 PSI 115 PSI 60 PSI
Maximum hydrostatic test pressure
(refer to note #4)
130 PSI 170 PSI 90 PSI
Maximum diameter solids (spherical), inches (mm) 1⁄2 (13) 7⁄16 (11) 7⁄16 (11) 5⁄16 (8) 7⁄16 (11) 9⁄16 (14) 5⁄8 (16) 1⁄2 (13) 9⁄16 (14) 9⁄16 (14)
Shaft Diameter
a) At impeller (nominal), inches (mm) 7⁄8 (22) 11⁄4 (32)
b) At mechanical seal, inches (mm) 11⁄4 (32) 15⁄8 (41)
c) Between bearings, inches (mm) 15⁄8 (41) 25⁄16 (59)
d) At coupling, inches (mm) 11⁄8 (29) 15⁄8 (41)
Maximum shaft deection at shaft seal faces, inches (mm)
Does not exceed .002 (.05)
Bearing Housing
a) Front radial bearing 6207 6309
b) Rear thrust bearing 6307 5310
c) Bearing centers, inches (mm) 45⁄16 (110) 67⁄8 (175)
Minimum distance required to remove bearing
housing assembly with impeller, stufng box/seal 4 (102) 5 (127)
plate and bracket (back pull-out) (refer to note #1),
inches (mm)
Maximum temperature of liquid pumped for 200°F (93°C)
normal seal operation
Speed range, RPM 1450 to 2400 to 1450 to 2400 to 1750 to 1150 to
2150 3450 2150 3450 3450 2400
Static priming lift, with full diameter impeller
at maximum allowable operating speed and with 25 feet (7.6 m)
suction check valve (refer to note #2)
Minimum B10 life hours (refer to note #3) 20,000 hrs +
Weight, pump end only, lbs. (kg) 176 169 176 176 250 235 294 294 410 400
(80) (76) (80) (80) (113) (106) (133) (133) (186) (182)
Weight, back pull-out section (bearing housing, 75 72 75 75 100 90 160 160 185 175
stufng box/seal plate impeller, seal assembly, (34) (32) (34) (34) (45) 41) (73) (73) (84) (80)
shaft, bearings, etc.), lbs. (kg)
Shipping weight, PEO, lbs. (kg) 190 185 190 190 275 260 310 310 425 415
(86) (84) (86) (86) (125) (118) (141) (141) (193) (188)
NOTES:
1. Distance shown required for removal of complete back pull-out assembly straight out of pump casing.
2. Based on nominal pipe size with 5 feet (1.5 m) horizontal length, zero discharge head and 68ºF (20ºC) water temperature at sea level.
3. Based on an operating point at 50% of BEP capacity.
4. Without check valve or check valve partially open.
Mechanical Data

PAGE 31
Commercial Water
Goulds Water Technology
Prime Line® Specications — 4E1, 6E1, 6E2
4E1 6E1 6E2
Suction and discharge port sizes, inches 4" x 4" 6" x 6" 6" x 6"
Flanged, at face, PSI 125 125 125
Minimum casing thickness, inches ½ ½ ½
Maximum working pressure, PSI 125 65 145
Maximum hydrostatic test pressure (refer to note #4) 185 95 215
Type of impeller Enclosed Open Enclosed
Maximum diameter solids (spherical), inches ½ 1 1
Shaft Diameter
a) At impeller (nominal), inches 1¾
b) At mechanical seal, inches 1¾
c) Between bearings, inches 3
d) At coupling, inches 1¾
Maximum shaft deection at shaft seal faces, inches Does not exceed .002
Bearing Housing
a) Front radial bearing, single row #313
b) Rear thrust bearing, single row #313
c) Bearing centers, inches 10.040
Minimum distance required to remove bearing housing
assembly with impeller, stufng box/seal plate and 5½
bracket (back pull-out) (refer to note #1), inches
Maximum temperature of liquid pumped for 200°F (93°C)
normal seal operation
Speed range, RPM 1150 to 2400 1150 to 2000 1150 to 2600
Static priming lift, with full diameter impeller
at maximum allowable operating speed and with 25 feet 22 feet 22 feet
suction check valve (refer to note #2)
Oil capacity for oil lube bearings (bearing housing) Approx. 52 . oz.
Minimum L10 life, hours (refer to note #3) 24,000
Weight, pump end only, lbs. 550 610 620
Weight, back pull-out section (bearing housing,
stufng box/seal plate impeller, seal assembly, 400 460 470
shaft, bearings, etc.), lbs.
Shipping weight, PEO, lbs. 580 640 650
NOTES:
1. Distance shown required for removal of complete back pull-out assembly straight out of pump casing.
2. Based on nominal pipe size with 5 feet (1.5 m) horizontal length, zero discharge head and 68ºF (20ºC) water temperature at sea level.
3. Based on an operating point at 50% of BEP capacity.
4. Without check valve or check valve partially open.
Mechanical Data

Goulds is a registered trademark of Goulds Pumps, Inc. and is used under license.
© 2015 Xylem Inc. BPRIMELINE R1 July 2015
Xylem Inc.
2881 East Bayard Street Ext., Suite A
Seneca Falls, NY 13148
Phone: (800) 453-6777
Fax: (888) 322-5877
www.gouldswatertechnology.com
1) The tissue in plants that brings water upward from the roots;
2) a leading global water technology company.
We’re a global team unied in a common purpose: creating innovative solutions to
meet our world’s water needs. Developing new technologies that will improve the
way water is used, conserved, and re-used in the future is central to our work. We
move, treat, analyze, and return water to the environment, and we help people use
water efciently, in their homes, buildings, factories and farms. In more than 150
countries, we have strong, long-standing relationships with customers who know us
for our powerful combination of leading product brands and applications expertise,
backed by a legacy of innovation.
For more information on how Xylem can help you, go to www.xyleminc.com
Xylem