546389 2 Goulds E SV Vertical Pump Technical Brochure
: Pump 546389 2 Goulds E-Sv Vertical Pump Technical Brochure 546389_2_Goulds e-SV Vertical Pump Technical Brochure pdf
Open the PDF directly: View PDF
.
Page Count: 88

e-SV
™
60 Hz Technical Manual
E-SV SERIES VERTICAL MULTI-STAGE PUMPS
TECHNICAL BROCHURE
BeSV60 R6

PAGE 2
Commercial Water
Goulds Water Technology

PAGE 3
Commercial Water
Goulds Water Technology
Contents
Coverage Curves.................................................................................................4
General Market Specications . . . . . . . . . . . . . . . . . . . . . . . . . . . . . . . . . . . . . . . . . . . . . . . . . . . . . . . . . . . . . . . . . . . . . . . . . . . . . . . . . . . . . 5
Characteristics of 1-22SV Series ....................................................................................6
Characteristics of 33-125SV Series..................................................................................6
General Characteristics . . . . . . . . . . . . . . . . . . . . . . . . . . . . . . . . . . . . . . . . . . . . . . . . . . . . . . . . . . . . . . . . . . . . . . . . . . . . . . . . . . . . . . . . . . . 7
Typical Applications of e-SV Pumps .................................................................................8
e-SV Nomenclature............................................................................................9-12
1-22SV Series Pump Cross Section and Main Components.........................................................13-14
33-92SV Series Pump Cross Section and Main Components . . . . . . . . . . . . . . . . . . . . . . . . . . . . . . . . . . . . . . . . . . . . . . . . . . . . . . . 15-16
125SV Series Pump Cross Section and Main Components . . . . . . . . . . . . . . . . . . . . . . . . . . . . . . . . . . . . . . . . . . . . . . . . . . . . . . . . . 17-18
e-SV Mechanical Seals ...........................................................................................19
Maximum Allowable Working Pressure Charts . . . . . . . . . . . . . . . . . . . . . . . . . . . . . . . . . . . . . . . . . . . . . . . . . . . . . . . . . . . . . . . . . . . . . .20
Maximum Inlet Pressure / Motor Data - Starts Per Hour ...............................................................21
Motor Data ..................................................................................................21-25
3500 RPM Curves, Dimensions and Weights . . . . . . . . . . . . . . . . . . . . . . . . . . . . . . . . . . . . . . . . . . . . . . . . . . . . . . . . . . . . . . . . . . . . . 26-47
1750 RPM Curves, Dimensions and Weights . . . . . . . . . . . . . . . . . . . . . . . . . . . . . . . . . . . . . . . . . . . . . . . . . . . . . . . . . . . . . . . . . . . . . 48-69
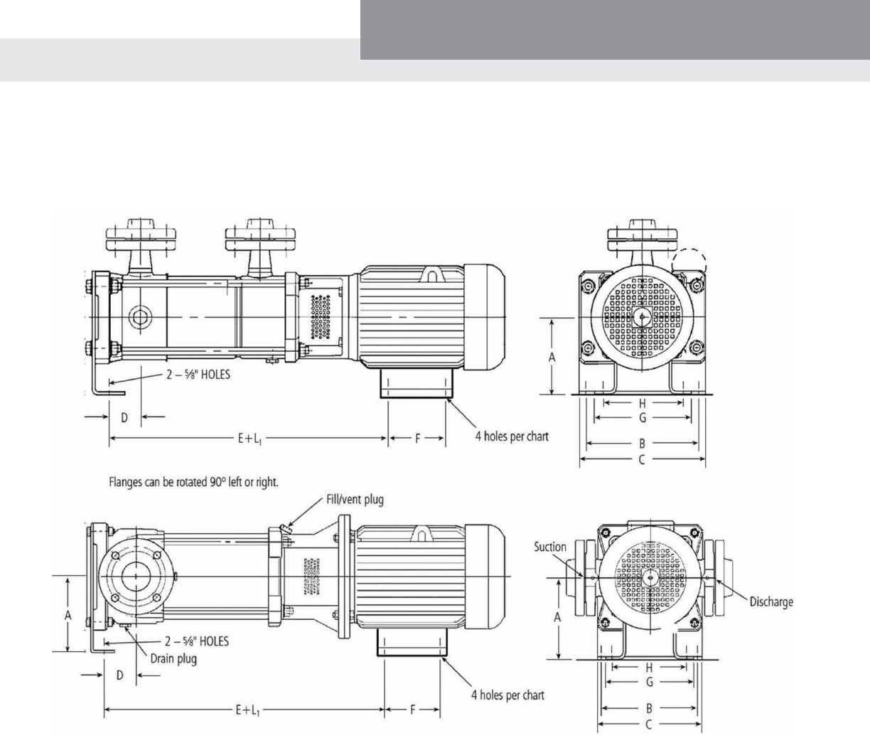
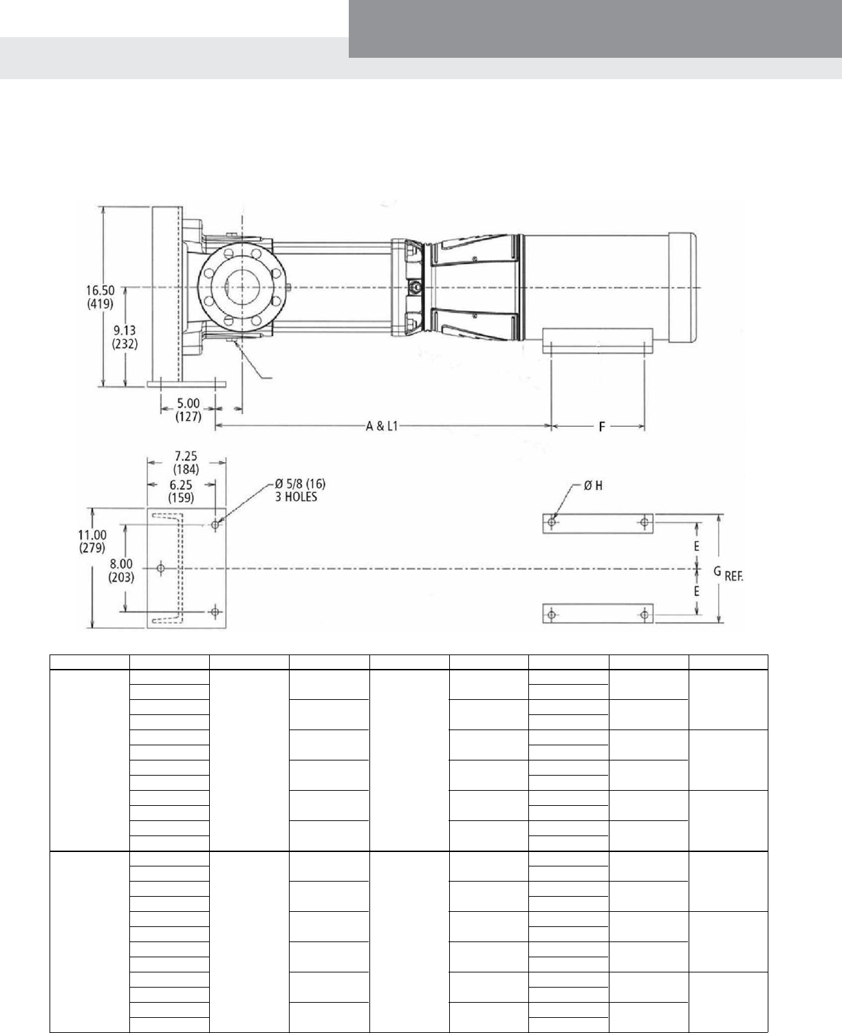
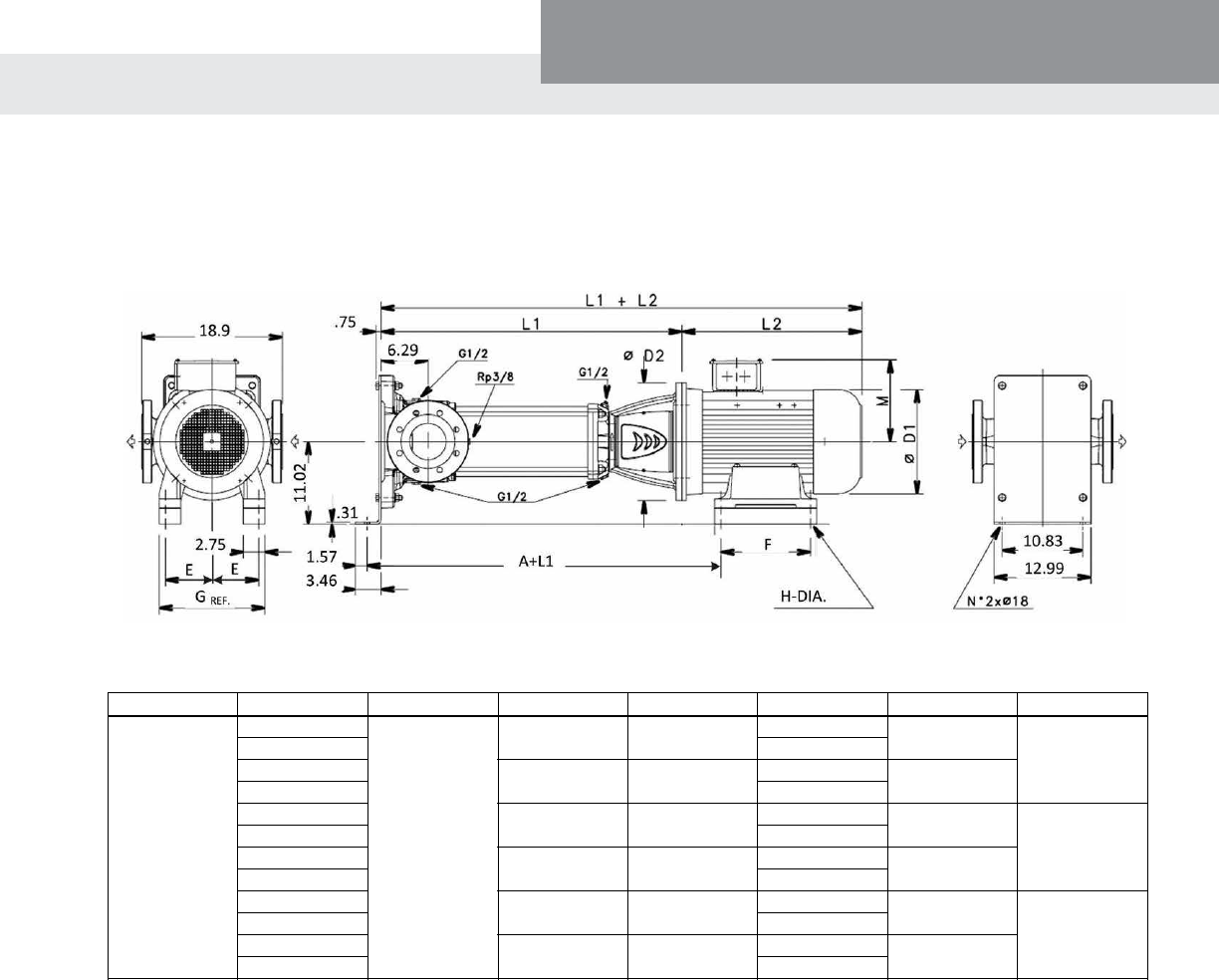
Horizontal Mounting Options ..................................................................................70-73
Table of Hydraulic Performances at 3500 RPM....................................................................74-79
Table of Hydraulic Performances at 1750 RPM....................................................................80-85
Technical Appendix . . . . . . . . . . . . . . . . . . . . . . . . . . . . . . . . . . . . . . . . . . . . . . . . . . . . . . . . . . . . . . . . . . . . . . . . . . . . . . . . . . . . . . . . . . 86-88
e-SV Rating Plate
1 Goulds Water Technology Catalog Number
2 Capacity Range
3 TDH Range
4 Rated Speed
5 Rated Horsepower
6 Maximum Operating Pressure
7 Maximum Operating Temperature
8 Pump Serial Number

PAGE 4
Commercial Water
Goulds Water Technology
0
1000
FEET
312 510203050 100 200
m3/h
1241520
GPM
METERS
200
400
600
800
1200
440 300 400 500 1000
6 8 10 30 40 60 80 100 140
50
100
150
200
250
300
350
33SV
46
SV
66
SV 92
SV
15SV
22SV
10SV5SV3SV1SV
125SV
3500 RPM
0
250
FEET
312 510203050 100 200
m3/h
1241520
GPM
METERS
50
100
150
200
300
440 300 400 500 1000
6 8 10 30 40 60 80 100 140
50
75
0
25
33
SV
46
SV
66
SV 92
SV
15SV
22SV
10SV5SV3SV1SV
125SV
1750 RPM
e-SV Coverage Curve

PAGE 5
Commercial Water
Goulds Water Technology
e-SV General Market Specications
MUNICIPAL, AGRICULTURAL, LIGHT INDUSTRY,
WATER TREATMENT, HEATING AND AIR CONDITIONING
Applications
• Handling of water, free of suspended solids, in the
municipal, industrial and agricultural markets
• Pressure boosting and water supply systems
• Fire ghting jockey pumps
• Irrigation systems
• Wash systems
• Water treatment plants: reverse osmosis
• Handling of moderately aggressive liquids, demineralized
water, water and glycol, etc.
• Circulation of hot and cold water for heating, cooling and
conditioning systems
• Boiler feed
Specications
PUMP
The e-SV pump is a non-self priming vertical multistage pump
coupled to a standard motor.
The liquid end, located between the upper cover and the
pump casing, is held in place by tie rods. The pump casing is
available with different congurations and connection types.
• Delivery: up to 725 GPM
• Head: up to 1200 feet
• Temperature of pumped liquid:
-20ºF to 250ºF (-30ºC to 120ºC) standard version
• Optional temperature range up to 300ºF (149ºC) high
temperature version
• Maximum operating pressure
– SV1-22 with oval anges: 230 PSI (16 bar)
– SV1-22 with round anges or Victaulic: 360 or 575 PSI (25
or 40 bar)
– SV33, 46: 360 or 580 PSI (25 or 40 bar)*
– SV 66, 92: 360 or 580 PSI (25 or 40 bar)*
– SV 125: 360 or 580 PSI (25 or 40 bar)
• Direction of rotation: clockwise looking at the pump from
the top down (marked with an arrow on the adapter and
on the coupling).
MOTOR
• Standard NEMA TC Frame motors in open drip proof or
totally enclosed fan cooled.
• 3500 RPM nominal
• Standard voltage:
• Single phase version: 115-208/230 V, 60 Hz up to 3 HP
or 208-230 V for 5 HP
• Three phase version, 2 pole: 208-230/460 V, 60 Hz up 75
HP
* Based on pump staging

PAGE 6
Commercial Water
Goulds Water Technology
e-SV Characteristics
1SV, 3SV, 5SV, 10SV, 15SV, 22SV Series
• Vertical multistage centrifugal pump. All metal parts in
contact with the pumped liquid are made of stainless steel.
• The following versions are available:
F – ANSI anges, in-line delivery and suction ports, AISI 304
T – Oval anges (NPT), in-line delivery and suction ports,
AISI 304
R – ANSI anges, delivery port above the suction port, with
four adjustable positions, AISI 304
N – ANSI anges, in-line delivery and suction ports, AISI
316
P – Victaulic couplings, in-line delivery and suction ports,
AISI 316
G – ANSI ange, in-line delivery and suction ports, Class
35/40B cast iron.
C – ISO clamp, AISI 316
33SV, 46SV, 66SV, 92SV, 125SV Series
• Vertical multistage centrifugal pump with impellers, diffus-
ers and outer sleeve made entirely of stainless steel, and
with pump casing and motor adapter made of cast iron in
the standard version
• Rotating components made entirely of AISI 316 stainless
steel
• High heads and capacities ve sizes: 33SV, 46SV, 66SV,
92SV, 125SV
• Re-designed liquid end provides improved efciency and
energy savings
• Innovative axial load compensation system on pumps with
higher head. This ensures reduced axial thrusts and en-
ables the use of standard NEMA TC motors that are easily
found in the market.
Optional Features
• Horizontal version
• Special voltages, 50 Hz frequency
• Special materials for the mechanical seal, gaskets and
elastomers
• Innovative axial load compensation system on pumps with
higher head. This ensures reduced axial thrusts and en-
ables the use of standard NEMA TC motors that are easily
found in the market.
• Seal housing chamber designed to prevent the accumula-
tion of air in the critical area next to the mechanical seal
• Mechanical seal according to EN 12756 (ex DIN 24960)
and ISO 3069
• Versions with ANSI anges that can be coupled to ANSI
raised face counter-anges
• Threaded oval counter-anges made of stainless steel are
standard supply for the T versions
• Easy maintenance. No special tools required for assembly
or disassembly
• Standard version for temperatures ranging from:
-20ºF to 250ºF (30ºC to 120ºC)
• Balanced mechanical seal according to EN 12756 (ex DIN
24960) and ISO 3069, which can be replaced without
removing the motor from the pump
• Seal housing chamber designed to prevent the accumula-
tion of air in the critical area next to the mechanical seal
• Standard version for temperature ranging from:
-20ºF to 250ºF (-30ºC to 120ºC)
• Pump body tted with taps for installing pressure gauges
on both suction and delivery anges
• In-line ports with ANSI anges that can be coupled to
counter-anges, in compliance with ANSI raised face.
• Mechanical sturdiness and easy maintenance. No special
tools required for assembly or disassembly.
• Tropicalized motors
• Premium E and explosion proof motors
• 1750 RPM, 4 pole motors
• Passivation

PAGE 7
Commercial Water
Goulds Water Technology
General Characteristics – 2-pole
SERIES SVT
1SV, 3SV, 5SV,
10SV, 15SV, 22SV
SERIES SVF, SVN
1SV, 3SV, 5SV,
10SV, 15SV, 22SV
SERIES SVR
1SV, 3SV, 5SV,
10SV, 15SV, 22SV
SERIES SVP
VICTAULIC
1SV, 3SV, 5SV,
10SV, 15SV, 22SV
SERIES SVG, SVN
33SV, 46SV, 66SV,
92SV, 125SV
e-SV Product Range 1SV 3SV 5SV 10SV 15SV 22SV 33SV 46SV 66SV 92SV 125SV
Nominal Flow (GPM) 9 15 30 50 80 110 150 220 350 450 600
Flow Range(GPM) 2-12 3-22 7-45 9-75 18-125 21-150 30-195 45-285 70-420 90-580 120-700
Max. Head (Ft) 860 1085 975 1150 1060 880 1125 1210 850 715 570
Max. Working Pressure (PSIG) 580 360/580
Temperature Range (°F) Standard -20°F - 250°F (-30°C - 121°C)
High Temp Option up to 300°F (150°C) –
Motor Power [HP] ½ – 5 HP ½ – 7½ ¾ – 10 ¾ – 20 2 – 25 3 – 30 3 – 60 7½ – 75 10 – 75 15 – 75 20 – 75
Max Pump Efciency 51% 60% 70% 70% 70% 71% 76% 78% 78% 80% 79%
Materials of Construction
SVT 304 SS –
SVF 304 SS –
SVN 316L SS Cast Stainless Steel / 316L SS
SVR 304 SS –
SVP 316L SS –
SVC 316L SS –
SVG ASTM Class 35/40B Cast Iron / 304 SS
Connection Sizes
SVT - Oval NPT 1¼" 1¼" 1¼" 2" 2" 2" –
SVF - Round ANSI 1¼" 1¼" 1¼" 2" 2" 2" –
Size/Class 300# 300# 300# 300# 300# 300#
SVN - Round ANSI 1¼" 1¼" 1¼" 2" 2" 2" 2½" 3" 4" 4" 5"
Size/Class 300# 300# 300# 300# 300# 300# 150/300# 150/300# 150/300# 150/300# 150/300#
SVR - Top/Bottom Round 1¼" 1¼" 1¼" 2" 2" 2" –
ANSI Size/Class 300# 300# 300# 300# 300# 300#
SVP - Victaulic 1¼" 1¼" 1¼" 2" 2" 2" –
SVC - Clamp 1½" 1½" 1½" 2" 2" 2" –
SVG - Cast Iron 1¼" 1¼" 1¼" 2" 2" 2" 2½" 3" 4" 4" 5"
Size/Class 250# 250# 250# 250# 250# 250# 125/250# 125/250# 125/ 250# 125/ 250# 125/250#

PAGE 8
Commercial Water
Goulds Water Technology
Typical Applications of e-SV Series Multi-Stage Pumps
Water Supply and Pressure Boosting
• Pressure boosting in buildings, hotels, residential complexes
• Pressure booster stations, supply of water networks
• Booster packages
Water Treatment
• Ultra ltration systems
• Reverse osmosis systems
• Water softeners and de-mineralization
• Distillation systems
• Filtration
Light Industry
• Washing and cleaning plants (washing and degreasing of
mechanical parts, car and truck wash tunnels, washing of
electronic industry circuits)
• Commercial washers
• Fire ghting system pumps
Irrigation and Agriculture
• Greenhouses
• Humidiers
• Sprinkler irrigation
Heating, Ventilation and Air Conditioning
(HVAC)
• Cooling towers and systems
• Temperature control systems
• Refrigerators
• Induction heating
• Heat exchangers
• Boilers
• Water recirculation and heating

PAGE 9
Commercial Water
Goulds Water Technology
e-SV Product Line
Numbering System for 1 – 22SV Liquid End Only
The various versions of the e-SV line are identied by a product code number on the pump label. This number is also the
catalog number for the pump. The meaning of each digit in the product code number is shown below.
Note: Not all combinations are possible.
Example Product Code
22 SV 0 2 F E 3 0
Special Congurations (optional Characters)
A = Cooling Chamber only
B = Cooling Chamber + Passivation
C = Cooling Chamber + Low NPSH
F = Destaged - 1 stage
G = Destaged - 2 stage
H = Horizontal mount only
J = Horizontal mount + Passivation
K = Horizontal mount + Low NPSH
L = Horizontal mount + High Pressure
N = Low NPSH only
P = Passivation only
Z = High pressure only
Seal Material
0 = Carb-SilCar-Viton (Standard)
1 = Carb-SilCar-AFLAS (HighTemp)
2 = SilCar-SilCar-Viton
4 = SilCar-SilCar-EPR
6 = Carb-SilCar-EPR
Pole-Hz
1 = 2–50 3 = 2–60
2 = 4–50 4 = 4–60
Motor Frame (NEMA)
A = 56C D = 250TC
B = 180TC E = 280TC
C = 210TC
Conguration
C = Clamp-316 P = Victaulic-316 R = (SVC) 12Suct-12Disch
F = Round-304 (SVB) T = Oval-304 (SVA) W = (SVC) 12Suct-03Disch
G = CI-304 X = (SVC) 12Suct-06Disch
N = Round-316 (SVD) Y = (SVC) 12Suct-09Disch
Total Number of Impeller Stages (may be 1 or 2 characters)
Product Line:
SV – Stainless Vertical
Nominal Flow:
1 = 5 GPM 10 = 53 GPM
3 = 16 GPM 15 = 80 GPM
5 = 26 GPM 22 = 116 GPM
Suction
discharge
location
Top / Bottom

PAGE 10
Commercial Water
Goulds Water Technology
e-SV Product Line
Numbering System for 33 – 125SV Liquid End Only
125 SV 8 1 2 B F E 2 0
The various versions of the e-SV line are identied by a product code number on the pump label. This number is also the
catalog number for the pump. The meaning of each digit in the product code number is shown below.
Note: Not all combinations are possible.
Example Product Code
Special Congurations (optional Characters)
H = Horizontal mount only
J = Horizontal mount + Passivation
K = Horizontal mount + Low NPSH (33, 46 and 66 only)
L = Horizontal mount + High Pressure
N = Low NPSH only (33, 46 and 66 only)
Z = High pressure (250/300# pump body)
Seal Material
0 = Carb-SilCar-Viton
2 = SilCar-SilCar-Viton
4 = SilCar-SilCar-EPR
6 = Carb-SilCar-EPR
7 = Carb-SilCar-Viton (Cart)
8 = SilCar-SilCar-EPR (Cart)
Pole-Hz
1 = 2–50 3 = 2–60
2 = 4–50 4 = 4–60
Motor Frame (NEMA)
B = 180TC E = 280TC
C = 210TC F = 320TSC
D = 250TC G = 360TSC
Conguration
G = Round-CI-304
N = Round-316
125SV ONLY
Reduced Trim Diameter A = 141 mm B = 136 mm C = 145 mm (full dia.)
Blank if 33-92SV
Number of Reduced Trim Impellers
Total Number of Impellers/Stages
Product Line: SV – Stainless Vertical
Nominal Flow:
33 = 175 GPM
46 = 240 GPM
66 = 350 GPM
92 = 485 GPM
125 = 660 GPM

PAGE 11
Commercial Water
Goulds Water Technology
e-SV Product Line
Numbering System for 1 – 22SV Pump & Motor Combination
The various versions of the e-SV line are identied by a product code number on the pump label. This number is also the
catalog number for the pump. The meaning of each digit in the product code number is shown below.
Note: Not all combinations are possible.
Example Product Code
2 SV 2 2 F A 2 F 5 1 A H
Special Congurations (1 or 2 Characters)
A = Cooling Chamber only K = Horizontal mount + Low NPSH
B = Cooling Chamber + Passivation L = Horizontal mount + High Pressure
C = Cooling Chamber + Low NPSH M = i-Alert
F = Destaged - 1 stage N = Low NPSH only
G = Destaged - 2 stage P = Passivation only
H = Horizontal mount only Z = High Press (250/300# pump body)
J = Horizontal mount + Passivation
Seal Material
0 = Carb-SilCar-Viton 4 = SilCar-SilCar-EPR
1 = Carb-SilCar-AFLAS (HighTemp) 6 = Carb-SilCar-EPR
2 = SilCar-SilCar-Viton
Motor Enclosure
1 = ODP 6 = Prem-TEFC A = Chem
2 = TEFC 7 = Prem-XP B = Prem-Chem
3 = X-Proof 8 = Prem-WD C = Class 1 Div 2
4 = WD - Tropical 9 = Marine
5 = Prem-ODP
Voltage
A = 115/230 H = 190/380 R = 220
B = 230 J = 115/208-230 S = 415
C = 230/460 K = 208 T = 220/380 WYE
D = 460 L = 208-230 U = 380-660 WYE
E = 575 M = 190-380/415 V = 208-230/460 WYE
F = 208-230/460 N = 380 W = 220/380/440
G = 200 P = 110/220
Pole-Hz-Phase
1 = 2-50-1 5 = 4-50-1
2 = 2-50-3 6 = 4-50-3
3 = 2-60-1 7 = 4-60-1
4 = 2-60-3 8 = 4-60-3
HP Rating
A = 0.50 F = 3 L = 20 S = 60
B = 0.75 G = 5 M = 25 T = 75
C = 1.00 H = 7.5 N = 30 U = 100
D = 1.50 J = 10 P = 40
E = 2 K = 15 R = 50
Conguration OPTION
C = Clamp-316
F = Round-304 (SVB) R = (SVC) 12Suct-12Disch
G = CI-304 W = (SVC) 12Suct-03Disch
N = Round-316 (SVD) X = (SVC) 12Suct-06Disch
P = Victaulic-316 Y = (SVC) 12Suct-09Disch
T = Oval-304 (SVA)
Total Number of Impeller Stages (may be 1 or 2 characters)
Product Line:
SV – Stainless Vertical
Nominal Flow:
1 = 5 GPM 10 = 53 GPM
3 = 16 GPM 15 = 80 GPM
5 = 26 GPM 22 = 116 GPM
Suction
discharge
location
Top / Bottom

PAGE 12
Commercial Water
Goulds Water Technology
e-SV Product Line
Numbering System for 33 – 125SV Pump & Motor Combination
The various versions of the e-SV line are identied by a product code number on the pump label. This number is also the
catalog number for the pump. The meaning of each digit in the product code number is shown below.
Note: Not all combinations are possible.
Example Product Code
125 SV 8 2 A G K 3 F 2 0
Special Congurations (1 or 2 Characters)
H = Horizontal mount only M = i-Alert
J = Horizontal mount + Passivation N = Low NPSH only (33, 46 and 66 only)
K = Horizontal mount + Low NPSH P = Passivation only
L = Horizontal mount + High Pressure Z = High Press (250/300# pump body/Casing)
Seal Material
0 = Carb-SilCar-Viton 6 = Carb-SilCar-EPR
2 = SilCar-SilCar-Viton 7 = Carb-SilCar-Viton (Cart)
4 = SilCar-SilCar-EPR 8 = SilCar-SilCar-EPR (Cart)
Motor Enclosure
1 = ODP 5 = Prem-ODP 9 = Marine
2 = TEFC 6 = Prem-TEFC A = Chem
3 = X-Proof 7 = Prem-XP B = Prem-Chem
4 = WD - Tropical 8 = Prem-WD C = Class 1 Div 2
Voltage
A = 115/230 H = 190/380 R = 220
B = 230 J = 115/208-230 S = 415
C = 230/460 K = 208 T = 220/380 WYE
D = 460 L = 208-230 U = 380-660 WYE
E = 575 M = 190-380/415 V = 208-230/460 WYE
F = 208-230/460 N = 380
G = 200 P = 110/220
Pole-Hz-Phase
1 = 2-50-1 5 = 4-50-1
2 = 2-50-3 6 = 4-50-3
3 = 2-60-1 7 = 4-60-1
4 = 2-60-3 8 = 4-60-3
HP Rating
F = 3 L = 20 R = 50
G = 5 M = 25 S = 60
H = 7.5 N = 30 T = 75
J = 10 P = 40 U = 100
K = 15
Conguration
G = Round-CI-304 N = Round-316
125SV ONLY
Reduced Trim Diameter A = 141 mm B = 136 mm C = 145 mm (full dia.)
Blank if 33-92SV
Number of Reduced Trin Impeller
Total Number of Impeller Stages (may be 1 or 2 characters)
Product Line:
SV – Stainless Vertical
Nominal Flow:
33 = 175 GPM 92 = 485 GPM
46 = 240 GPM 125 = 660 GPM
66 = 350 GPM

PAGE 13
Commercial Water
Goulds Water Technology
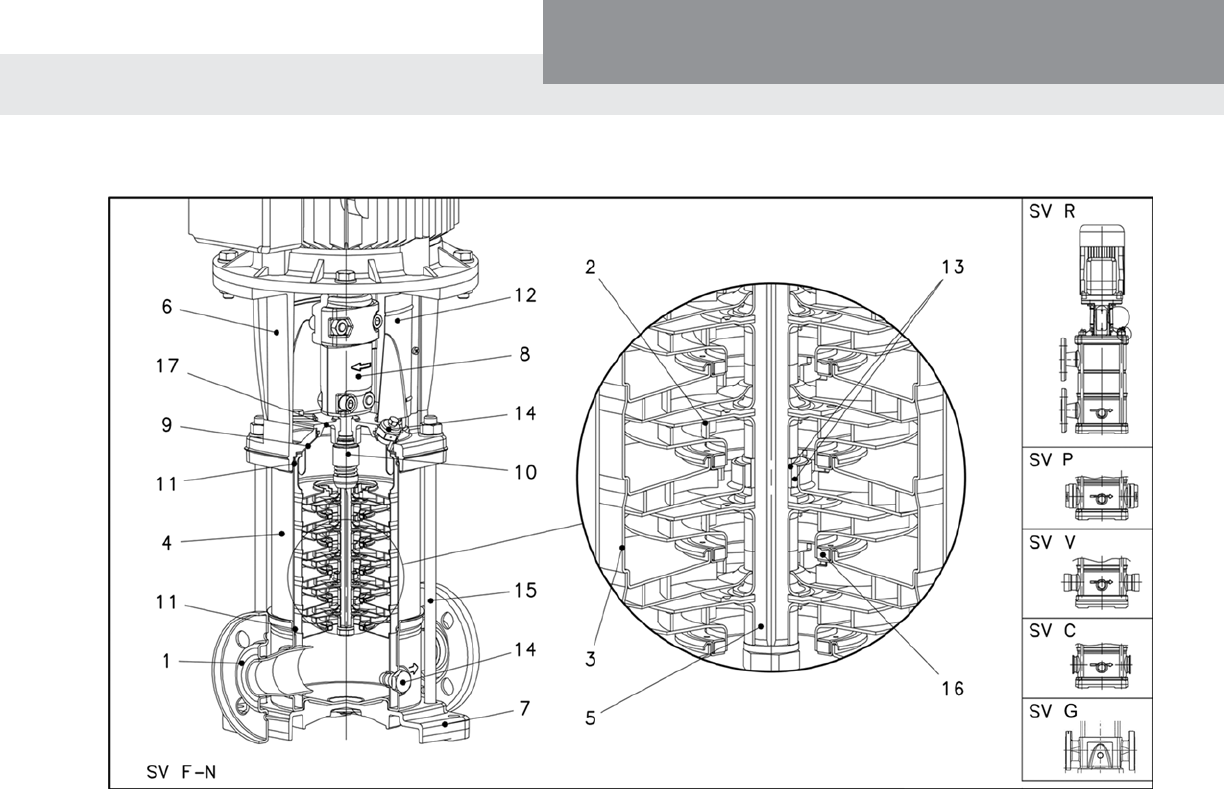
Base Models: 1-22SV — Major Components

PAGE 14
Commercial Water
Goulds Water Technology
Base Models: 1-22SV — Major Components
F, G, P, R VERSIONS
Ref. No. Name Material Reference Standards
USA Europe
1 Pump Body Stainless Steel (F, P, R) AISI 304 EN 10088-1-X5-CrNi18-10 (1.4301)
Cast Iron (G) ASTM Class 35/40B EN 1561 GJL 250 (JL1040)
2 Impeller Stainless Steel AISI 304 EN 10088-1-X5-CrNi18-10 (1.4301)
3 Diffuser Stainless Steel AISI 304 EN 10088-1-X5-CrNi18-10 (1.4301)
4 Casing Stainless Steel AISI 316L EN 10088-1-X2-CrNiMo17-12-2 (1.4404)
5 Shaft Stainless Steel AISI 316 EN 10088-1-X2-CrNiMo17-12-2 (1.4401)
6 Adapter Cast Iron ASTM Class 35/40B EN 1561-GJL-250 (JL1040)
7 Base Aluminum (F, P, R) A384.0-F EN 1706-AC-AlSi11Cu2(Fe) (AC46100)
N/A (G) N/A N/A
8 Coupling Aluminum A384.0-F EN 1706-AC-AlSi11Cu2(Fe) (AC46100)
9 Seal Plate Stainless Steel AISI 316L EN 10088-1-X2-CrNi17-12-2 (1.4404)
10 Mechanical Seal Silicon Carbide / Carbon / Viton (opt. EPDM)
11 Elastomers Viton (opt. EPDM)
12 Coupling Guard Stainless Steel AISI 304 EN 10088-1-X5-CrNi18-10 (1.4301)
13 Shaft Sleeve and Bushing Tungsten Carbide
14 Fill/Drain Plugs Stainless Steel AISI 316 EN 10088-1-X2-CrNiMo17-12-2 (1.4401)
15 Tie Rods Carbon Steel / Zinc Plated A29 Gr. 1045 EN 10277
16 Wear Ring PPS
17 Seal Gland Stainless Steel AISI 316 EN 10088-1-X2-CrNiMo17-12-2 (1.4401)
N, P, C VERSIONS
Ref. No. Name Material Reference Standards
USA Europe
1 Pump Body Stainless Steel AISI 316L EN 10088-1-X2-CrNiMo17-12-2
(1.4404)
2 Impeller Stainless Steel AISI 316L EN 10088-1-X2-CrNiMo17-12-2
(1.4404)
3 Diffuser Stainless Steel AISI 316L EN 10088-1-X2-CrNiMo17-12-2
(1.4404)
4 Casing Stainless Steel AISI 316L EN 10088-1-X2-CrNiMo17-12-2
(1.4404)
5 Shaft Stainless Steel AISI 316 EN 10088-1-X2-CrNiMo17-12-2
(1.4401)
6 Adapter Cast Iron ASTM Class 35/40B EN 1561-GJL-250 (JL1040)
7 Base Aluminum A384.0-F EN 1706-AC-AlSi11Cu2(Fe) (AC46100)
8 Coupling Aluminum A384.0-F EN 1706-AC-AlSi11Cu2(Fe) (AC46100)
9 Seal Plate Stainless Steel AISI 316L EN 10088-1-X2-CrNi17-12-2 (1.4404)
10 Mechanical Seal Silicon Carbide / Carbon / Viton (opt. EPDM)
11 Elastomers Viton (opt. EPDM)
12 Coupling Guard Stainless Steel AISI 304 EN 10088-1-X5-CrNi18-10 (1.4301)
13 Shaft Sleeve and Bushing Tungsten Carbide
14 Fill/Drain Plugs Stainless Steel AISI 316 EN 10088-1-X2-CrNiMo17-12-2
(1.4401)
15 Tie Rods Carbon Steel / Zinc Plated A29 Gr. 1045 EN 10277
16 Wear Ring PPS
17 Seal Gland Stainless Steel AISI 316 EN 10088-1-X2-CrNiMo17-12-2
(1.4401)

PAGE 15
Commercial Water
Goulds Water Technology
Base Model: 33SV, 46SV, 66SV and 92SV — Major Components
45
44
29
3
19
4
38
24
31
26
25
36
6
11
13
9
41
49
46
48
5
2
30
20
35
37
32
22
21
47
28
40
23
10
33
35
7
42
1
12
18
12 10 34
15
18
18
12 10
40
14
18
28 23
1
30
LESS PISTON
WITH PISTON
16
39 27
27A
3
8
SV G-N

PAGE 16
Commercial Water
Goulds Water Technology
Base Model: 33SV, 46SV, 66SV and 92SV — Major Components
No. Description SVG (33 – 92SV) SVN (33 – 92SV)
Material ASTM DIN Material ASTM DIN
1 O-Ring, Piston Seal Viton (std) EPDM (opt) Viton (std) EPDM (opt)
2 O-Ring, Mechanical Seal Sleeve Viton (std) EPDM (opt) Viton (std) EPDM (opt)
3 O-Ring, Seal housing Viton (std) EPDM (opt) Viton (std) EPDM (opt)
4 O-Ring, Sleeve Viton (std) EPDM (opt) Viton (std) EPDM (opt)
5 Mechanical Seal See Seal Materials Chart for Complete Detail See Seal Materials Chart for Complete Details
5A Cartridge Seal (not shown)
6 Screw, Guard Stainless Steel A193-304 1.4301 Stainless Steel A193-304 1.4301
7 Screw, Piston Holding Disc Stainless Steel A193-316 1.4401 Stainless Steel A193-316 1.4401
8 Screw, Coupling Zinc Plated Steel B363 Zinc Plated Steel B633
9 Screw, MA and Seal Housing Zinc Plated Steel B633 Zinc Plated Steel B633
10 Screw, Impeller Stainless Steel A193-316 1.4401 Stainless Steel A193-316 1.4401
11 Washer, Coupling Carbon Steel A108 Carbon Steel A108
12 Washer, Impeller Stainless Steel A193-316 1.4401 Stainless Steel A193-316 1.4401
13 Pin, Coupling Carbon Steel A108 Carbon Steel A108
14 Plug, with Piston Stainless Steel A193-316 1.4401 Stainless Steel A193-316 1.4401
15 Plug, without Piston Stainless Steel A193-316 1.4401 Stainless Steel A193-316 1.4401
16 Plug, Fill Stainless Steel/O-Ring A193-316 1.4401 Stainless Steel/O-Ring A193-316 1.4401
17 Plug, Vent (not shown) Stainless Steel/O-Ring A193-316 1.4401 Stainless Steel/O-Ring A193-316 1.4401
18 Plug, Drain Stainless Steel/O-Ring A193-316 1.4401 Stainless Steel/O-Ring A193-316 1.4401
19 Pump Head Cast Iron A48 Class 35 JL1030 Stainless Steel 316 CF8M 1.4408
20 Impeller, Full Diameter Stainless Steel A193-316L 1.4404 Stainless Steel A193-316L 1.4404
21 Impeller, Reduced Diameter Stainless Steel A193-316L 1.4404 Stainless Steel A193-316L 1.4404
22 Lower Bearing Assembly SS/Cast Iron A193-316L/A48 Class 35 1.4404/JL1030 Stainless Steel A193-316L/316 CF8M 1.4404/1.4408
23 Piston Duplex SS A182-F51 1.4462 Duplex SS A182-F51 1.4462
24 Diffuser, Final Stainless Steel A193-316L 1.4404 Stainless Steel A193-316L 1.4404
25 Diffuser with Carbon Bushing Stainless Steel A193-316L 1.4404 Stainless Steel A193-316L 1.4404
26 Diffuser with Tungsten Bushing Stainless Steel A193-316L 1.4404 Stainless Steel A193-316L 1.4404
27 Outer Sleeve, 25 Bar Stainless Steel A193-316L 1.4404 Stainless Steel A193-316L 1.4404
27A Outer Sleeve, 40 Bar Stainless Steel A193-316L 1.4404 Stainless Steel A193-316L 1.4404
28 Holding Disc, Piston Seal Stainless Steel A193-316L 1.4404 Stainless Steel A193-316L 1.4404
29 Seal Housing Cast Iron A48 Class 35 JL1030 Stainless Steel 316 CF8M 1.4408
30 Spacer, Impeller Final Stainless Steel A193-316 1.4401 Stainless Steel A193-316 1.4401
31 Spacer, Shaft Bushing Stainless Steel A193-316 1.4401 Stainless Steel A193-316 1.4401
32 Spacer, Impeller Stainless Steel A193-316 1.4401 Stainless Steel A193-316 1.4401
33 Spacer, Impeller Lower (66-92SV) Stainless Steel A193-316 1.4401 Stainless Steel A193-316 1.4401
34 Bushing, Non-Piston Stainless Steel A193-316 1.4401 Stainless Steel A193-316 1.4401
35 Tungsten Carbide Bushing Tungsten Carbide Tungsten Carbide
36 Coupling Guard Stainless Steel A193-304 1.4301 Stainless Steel 304 1.4301
37 Shaft Duplex SS A182-F51 1.4462 Duplex SS A183-F51 1.4462
38 Mechanical Seal Shaft Sleeve Stainless Steel A193-316 1.4401 Stainless Steel A193-316 1.4401
39 Wear Ring, Impeller PPS Glass Filled PPS Glass Filled
40 Piston Seal Impregnated Carbon Impregnated Carbon
41 Stop Ring, Impeller Stainless Steel A193-316 1.4401 Stainless Steel A193-316 1.4401
42 Pump Body Cast Iron A48 Class 35 JL1030 Stainless Steel 316 CF8M 1.4408
43 Motor Adapter Plate (not shown) Cast Iron A48 Class 25 JL1030 Cast Iron A48 Class 25 JL1030
44 Motor Adapter Cast Iron A48 Class 25 JL1030 Cast Iron A48 Class 25 JL1030
45 Coupling, Half Cast Iron A48 Class 25 JL1030 Cast Iron A48 Class 25 JL1030
46 Nut, Tie-Rod Zinc Plated Steel B633 Zinc Plated Steel B633
47 Tie-Rod Zinc Plated Steel B633 Zinc Plated Steel B633
48 Washer, Tie-Rod Zinc Plated Steel B633 Zinc Plated Steel B633
49 Spring, Final Diffuser Stainless Steel A193-316 1.4401 Stainless Steel A193-316 1.4401

PAGE 17
Commercial Water
Goulds Water Technology
Base Models: 125SV — Major Components
SV G-N

PAGE 18
Commercial Water
Goulds Water Technology
Base Models: 125SV — Major Components
G VERSIONS
Ref. No. Name Material Reference Standards
USA Europe
1 Pump Body Cast Iron ASTM Class 35/40B EN 1561-GJL-250 (JL1040)
2 Impeller Stainless Steel AISI 304 EN 10088-1-X5-CrNi18-10 (1.4301)
3 Diffuser Stainless Steel AISI 304 EN 10088-1-X5-CrNi18-10 (1.4301)
4 Casing Stainless Steel AISI 316L EN 10088-1-X2-CrNiMo17-12-2
(1.4404)
5 Shaft Duplex Stainless Steel UNS S 31803 EN 10088-1-X17-CrNiMoN22-5-3
(1.4507)
6 Adapter (up to 40HP) Cast Iron ASTM Class 25 EN 1561-GJL-200 (JL1040)
Adapter (50HP and higher) ASTM Class A536 EN 1561-GJL-500-7 (JS1050)
7 Wear Ring PPS
8 Coupling (up to 40HP) Cast Iron A384.0-F EN 1706-AC-AlSi11Cu2(Fe) (AC46100)
Coupling (50HP and higher)
9-9A Upper Head / Seal Housing Cast Iron ASTM Class 35/40B EN 1561-GJL-250 (JL1040)
10 Mechanical Seal Silicon Carbide / Carbon / Viton (opt. EPDM)
11 Elastomers Viton (opt. EPDM)
12 Coupling Guard Stainless Steel AISI 304 EN 10088-1-X5-CrNi18-10 (1.4301)
13 Shaft Sleeve and Bushing Tungsten Carbide
14 Bushing for Diffuser Carbon
15 Fill/Drain Plugs Stainless Steel AISI 316 EN 10088-1-X2-CrNiMo17-12-2
(1.4401)
16 Tie Rods Carbon Steel / Zinc Plated A29 Gr. 1045 EN 10277
17 Adapter Ring Stainless Steel AISI 304 EN 10088-1-X5-CrNi18-10 (1.4301)
N VERSIONS
Ref. No. Name Material Reference Standards
USA Europe
1 Pump Body Stainless Steel AISI 316 EN 10088-1-X2-CrNiMo17-12-2 (1.4401)
2 Impeller Stainless Steel AISI 316 EN 10088-1-X2-CrNiMo17-12-2 (1.4401)
3 Diffuser Stainless Steel AISI 316 EN 10088-1-X2-CrNiMo17-12-2 (1.4401)
4 Casing Stainless Steel AISI 316L EN 10088-1-X2-CrNiMo17-12-2 (1.4404)
5 Shaft Duplex Stainless Steel UNS S 31803 EN 10088-1-X17-CrNiMoN22-5-3
(1.4507)
6 Adapter (up to 40HP) Cast Iron ASTM Class 25 EN 1561-GJL-200 (JL1040)
Adapter (50HP and higher) ASTM Class A536 EN 1561-GJL-500-7 (JS1050)
7 Wear Ring PPS
8 Coupling (up to 40HP) Cast Iron A384.0-F EN 1706-AC-AlSi11Cu2(Fe) (AC46100)
Coupling (50HP and higher)
9-9A Upper Head / Seal Housing Stainless Steel AISI 316 EN 10088-1-X2-CrNiMo17-12-2 (1.4401)
10 Mechanical Seal Silicon Carbide / Carbon / Viton (opt. EPDM)
11 Elastomers Viton (opt. EPDM)
12 Coupling Guard Stainless Steel AISI 304 EN 10088-1-X5-CrNi18-10 (1.4301)
13 Shaft Sleeve and Bushing Tungsten Carbide
14 Bushing for Diffuser Carbon
15 Fill/Drain Plugs Stainless Steel AISI 316 EN 10088-1-X2-CrNiMo17-12-2 (1.4401)
16 Tie Rods Carbon Steel / Zinc Plated A29 Gr. 1045 EN 10277
17 Adapter Ring Stainless Steel AISI 304 EN 10088-1-X5-CrNi18-10 (1.4301)

PAGE 19
Commercial Water
Goulds Water Technology
e-SV Mechanical Seals
Rotating Stationary Elastomers Spring Sleeve Set Screw Locking
Pump Face Face Collar
1 2 3 4 5 6
33SV Carbon Viton
46SV Silicon
316SS 316SS 300SS 316SS
66SV Carbide Silicon EPR
92SV Carbide
1 – 22SV 33 – 125SV
7543 2 1 3 3
6
VENT 1⁄8 NPT
VENT 1⁄8 NPT
PULLER
HOLES
CARTRIDGE SEAL
Pump Code Rotating Face
1
Stationary Face
2
Elastomers
3
Spring
4
Metal Components
5
Elastomer Temp
Limits °F (°C)
Seal Temp
Limits °F (°C)
Max. Working
Pressure Application
1SV
thru
22SV
0 Carbon
Silicon Carbide
Graphite Filled
Viton
316SS 316SS
-14 - 392°F
(-10 - 200°C)
-22 - 250°F 580 psi
(40 bar)
General
Service
2Silicon Carbide
Graphite Filled
Severe Duty
4
EPR -30 - 300°F
(-34 - 150°C)
Severe Duty
Boiler Feed
6 Carbon
General
Service
Boiler Feed
1FDA Grade
Carbon AFLAS -14 - 392°F
(-10 - 200°C)
up to 300°F
(149°C)
255 psi
(17.6 bar) Boiler Feed
33SV
thru
125SV
0 Carbon
Silicon Carbide
Graphite Filled
Viton
316SS 316SS
-14 - 392°F
(-10 - 200°C)
-22 - 250°F
(-30 - 120°C)
580 psi
(40 bar)
General
Service
2Silicon Carbide
Graphite Filled
Severe Duty
4Severe Duty
Boiler Feed
EPR -22 - 250°F
(-30 - 120°C)
6 Carbon
General
Service
Boiler Feed

PAGE 20
Commercial Water
Goulds Water Technology
MAXIMUM WORKING PRESSURE (PSIG)
TEMPERATURE (F)
-50 050100 150 200 250 300 350
0
100
200
300
400
500
600
700
800
1SV-22SV
CLASS 250 ASTM A48 CLASS 35 “G”
TRI CLAMP “C” & CLASS 300-304L/316L “R, W, XY”
OVAL “T”
VICTAULIC, TRI CLAMP & OVAL ONLY GO TO 250F
VICTAULIC “P”
CLASS 300-304L/316L “F & N”
-20 -14
EPR
Viton
High Temperature Seal Limit
Standard
Seal
Limit
MAXIMUM WORKING PRESSURE (PSIG)
TEMPERATURE (F)
-50 050100 150 200 250 300 350
0
100
200
300
400
500
600
700
800
33SV-125SV
CLASS 250 ASTM A48 CLASS 35 “G”
CLASS 300-316 “N”
-20 -14
EPR
Viton
Seal Limit
CLASS 150-316 “N”
CLASS 125 ASTM A48 CLASS 35 “G”
Maximum Allowable Working Pressure Charts

PAGE 21
Commercial Water
Goulds Water Technology
Motor Data – Starts per Hour / Minimum Run Time
HP Maximum Starts per Hour* Minimum run time between starts (seconds)
0.5 24 120
0.75 24 120
1 15 75
1.5 13 76
2 12 77
3 9 30
5 8 83
7.5 7 88
10 6 92
15 5 100
20 5 110
25 5 115
30 4 120
40 4 130
50 3 145
60 3 170
75 3 180
NOTE(S)
1) Recommended motor starts per hour and minimum run time calculated based on NEMA standards MG1-12.44 in accordance to
manufacturers allowable tolerance for heat rise and insulation breakdown.
2) Applied voltage and frequency in accordance with NEMA MG1-12.44
3) Starts based on NEMA three phase design A and design B AC induction motors.
4) External load WK2 is equal to or less than the values listed in NEMA MG1-12.54
5) Applicable to all NEMA (JM, JP, T and TC frame) motors used for Goulds Water Technology products.
6) Applicable to three phase motors only.
Maximum Inlet Pressure
The following table shows the maximum permissible inlet pressure. However, the actual inlet pressure + pressure
against a closed valve must always be lower than the maximum permissible operating pressure.
p1max ≤ PN - pmax
Having the following meaning of the symbols:
pmax = Maximum pressure delivered by the pump
p1max = Maximum inlet pressure
PN = Maximum operating pressure

PAGE 22
Commercial Water
Goulds Water Technology
Motor Data
3500 RPM, 60Hz
HP Phase Voltage FLA Enclosure Order No. SF Frame Size
½
1115/208-230 7/4.1-3.5 DP V04721 1.25
56C
115/208-230 TEFC V04722 1.25
3
208-230/460 2.6-2/1 DP V04A32E1BB3S 1.25
575 0.8 V04779 1.25
208-230/460 1.5/.75 DPE V04A32E4BB2S 1.25
230/460 2.6-2/1 TEFC V04A32F2BB3S 1.25
575 0.8 V04789 1.25
208-230/460 1.5/.75 TPE V04A32E5BB3S 1.25
208-230/460 2.4-2.2/1.1 XP V04A32E3BB1S 1.00
¾
1115/208-230 9.4/5.8-4.7 DP V05721 1.25
115/208-230 9.6/6.1-4.8 TEFC V05A12A2BB3S 1.25
3
230/460 2.7-2.6/1.3 DP V05A32F1BB3S 1.25
575 0.96 V05779 1.25
208-230/460 2.7-2.6/1.3 DPE V05A32E4BB2S 1.25
208-230/460 TEFC V05A32E2BB3S 1.25
575 .96 V05789 1.25
208-230/460 2.5-2.2/1.1 TPE V05A32E5BB3S 1.25
208-230/460 2.7-2.6/1.3 XP V05A32E3BB1S 1.00
1
1115/208-230 15/7.9-7.5 DP V06721 1.25
115/230 12/6 TEFC V06A12B2BB3S 1.25
3
208-230/460 3.7-3.6/1.8 DP V06A32E1BB3S 1.25
575 1.4 V06A32H1BB2S 1.25
208-230/460 3.7-3.6/1.8 DPE V06A32E4BB2S 1.25
208-230/460 TEFC V06A32E2BB3S 1.25
575 1.4 V06A32H2BB3S 1.25
230/460 2.8/1.4 TPE V06A32F5BB3S 1.25
208-230/460 3.7-3.6/1.8 XP V06A32E3BB1S 1.00
1½
1115/208-230 12.8/7-6.4 DP V07721 1.15
115/208-230 16/8.4-8 TEFC V07722 1.15
3
208-230/460 4.9-4.6/2.3 DP V07A32E1BB2S 1.15
575 1.8 V07A32H1BB2S 1.15
208-230/460 4.5-4.2/2.1 DPE V07741PE 1.15
208-230/460 4.9-4.6/2.3 TEFC V07A32E2BB2S 1.15
575 1.8 V07789 1.15
208-230/460 4.3-4/2 TPE V07742PE 1.15
208-230/460 5-4.6/2.3 XP V07743 1.00

PAGE 23
Commercial Water
Goulds Water Technology
Motor Data
3500 RPM, 60Hz
HP Phase Voltage FLA Enclosure Order No. SF Frame Size
2 1
115/208-230 26/12.4-13 DP V08721 1.15
56C
115/208-230 23/12-11.5 TEFC V08722 1.15
575 2.2 V08779 1.15
208-230/460 5.5-5/2.5 DPE V08A32E4BB2S 1.15
208-230/460 6.2-5.8/2.9 TEFC V08A32E2BB2S 1.15
575 2.2 V08A32H2BB2S 1.15
208-230/460 5.4-5/2.5 TPE V08A32E5BB2S 1.15
208-230/460 5.7-5.4/2.7 XP V08743 1.00
3 1
208-230 13.9-13 DP V09721 1.15
115/208-230 26/13.8-13 TEFC V09A12A2BB2S 1.15
575 3.2 V09A32H1BB2S 1.15
230/460 8-7.4/3.7 DPE V09A32F4BB2S 1.15
208-230/460 8.1-7.6/3.8 TEFC V09A32E2BB2S 1.15
575 3 V09A32H2BB2S 1.15
208-230/460 7/3.5 TPE V09A32E5BD2S 1.15 182TC
208-230/460 7.8-7.4/3.7 XP V09743 1.00 56C
5
1208-230 24-23 DP V10721A 1.15 184TC
208-230 23.5-21.7 TEFC V10A12D2BD2S 1.15
3
208-230/460 13.1-11.5/5.7 DP V10A32E1BD2S 1.15 182TC
575 4.8 V10A32H1BD2S 1.15
208-230/460 12.3-11.2/5.6 DPE V10741APE 1.15
184TC
208-230/460 13.2-12/6 TEFC V10A32E2BD2S 1.15
575 4.8 V10A32H2BD2S 1.15
230/460 11.2/5.6 TPE V10A32F5BD2S 1.15
208-230/460 13.2-12/6 XP V10A32E3BD1S 1.00
7½
1230 29 DP V11721 1.15 213TC
230 33 TEFC * V11722 1.15
3
208-230/460 19-18/9 DP V11A32E1BD2S 1.15
184TC
575 7.2 V11A32H1BB2S 1.15
208-230/460 18.5-16.8/8.4 DPE V11741APE 1.15
208-230/460 18.5-17.4/8.7 TEFC V11A32E2BD2S 1.15
575 7 V11A32H2BD2S 1.15
230/460 17.8/8.9 TPE V11742APE 1.15 213TC
230/460 17.6/8.8 XP V11743A 1.00 184TC

PAGE 24
Commercial Water
Goulds Water Technology
Motor Data
3500 RPM, 60Hz
HP Phase Voltage FLA Enclosure Order No. SF Frame Size
10
1208-230 48-46 DP V12A12C1BE2S 1.15 215TC
208-230 42-40 TEFC * V12722 1.15
3
208-230/460 25.6-23.2/11.6 DP V12A32E1BE2S 1.15
213TC 575 10 V12A32H1BE2S 1.15
208-230/460 24-23/11.5 DPE V12A32E4BE2S 1.15
208-230/460 26.2-23.8/11.9 TEFC V12A32E2BE2S 1.15
215TC
575 9.6 V12789 1.15
230/460 23.8/11.9 TPE V12A32F5BE2S 1.15
208-230/460 28-26/13 XP V12743 1.00
15
208-230/460 39-37/18.5 DP V13A32E1BE2S 1.15
575 14.5 V13779 1.15
208-230/460 36.7-34/17 DPE V13A32E4BE2S 1.15
208-230/460 38-35/17.5 TEFC V13A32E2BK2S 1.15
254TC
575 14 V13A32H2BK2S 1.15
208-230/460 37-34.4/17.2 TPE V13A32E5BK2S 1.15
208-230/460 37-33.6/16.8 XP V13A32E3BK2S 1.00
20
230/460 46/23 DP V14A32F1BK2S 1.15
575 18 V14A32H1BK2S 1.15
230/460 58/29 DPE V14A32F4BK2S 1.15
208-230/460 50-46/23 TEFC V14742 1.15
256TC
575 18.5 V14A32H2BK2S 1.15
208-230/460 49-45/22.5 TPE V14A32E5BK2S 1.15
208-230/460 49-45/22.5 XP V14743 1.00
25
208-230/460 65-60/30 DP V15A32E1BK2S 1.15 254TC
575 24 V15A32H1BK2S 1.15
230/460 58/29 DPE V15A32F4BK2S 1.15 256TC
208-230/460 61-57/28.5 TEFC V15A32E2BL2S 1.15
284TC
575 22.5 V15789 1.15
208-230/460 60-56/28 TPE V15742PE 1.15
230/460 57/28.5 XP V15743 1.15
30
230/460 70/35 DP V16741 1.15
575 27 V16A32H1BB2S 1.15
230/460 68/34 DPE V16A32F4BL2S 1.15
286TC 208-230/460 74-68/34 TEFC V16742 1.15
575 27 V16A32H2BL2S 1.15
208-230/460 76-68/34 TPE V16A32E5BL2S 1.15 284TC
208-230/460 74-70/35 XP V16743 1.15 286TC

PAGE 25
Commercial Water
Goulds Water Technology
Motor Data
3500 RPM, 60Hz
HP Phase Voltage FLA Enclosure Order No. SF Frame Size
40
208-230/460 102-96/48 DP V17741 1.15
286TC
575 37 V17A32H1BL2S 1.15
230/460 90/45 DPE V17A32F4BL2S 1.15
208-230/460 100-90/45 TEFC V17A32E2BL2S 1.15
575 35 V17789 1.15
230/460 95.7-88/44 TPE X17A32F5BM2S 1.15 324TSC
208-230/460 100-90/45 XP X17A32F3BM2S 1.15
50
3 230/460 118/59 DP V18741S 1.15
324TSC
575 48 V18779S 1.15
230/460 110/55 DPE V18741SPE 1.15
208-230/460 126-112/56 TEFC X18A32E2BM2S 1.15
326TSC
575 45 V18789S 1.15
208-230/460 119-108/54 TPE X18A32E5BM2S 1.15
230/460 112/56 XP X18A32F3BM2S 1.15
60
208-230/460 148-136/68 DP V19741S 1.15
575 55 V19779S 1.15
230/460 130/65 DPE V19741SPE 1.15
230/460 138/69 TEFC X19A32F2BP2S 1.15
364TSC
575 56 V19789S 1.15
208-230/460 150-134/67 TPE X19A32F5BP2S 1.15
230/460 134/67 XP X19A32F3BP2S 1.15
75
230/460 176/88 DP V20741S 1.15
575 75 V20779S 1.15
230/460 174/87 DPE X20A32F4BP2S 1.15
208-230/460 182-166/83 TEFC X20A32F2BP2S 1.15
575 67 V20789S 1.15
230/460 166/83 TPE X20A32F5BP2S 1.15 365TSC
230/460 XP X20A32F3BP2S 1.15
NOTES:
* Standard DP and TE Motors have a 1.15 Service Factor except for 7.5 HP and 10 HP, single-phase, TE Motors which are 1.0 S.F.
EXPLOSION-PROOF (XP) Motors above have a 1.15 Service Factor, min. Class B insulation, and a UL Class 1, Div. 1, Group D rating.
For availability consult factory. Goulds Water Technology choice of vendor.

PAGE 26
Commercial Water
Goulds Water Technology
Motor Dimensions (in) Weight (lbs.)
Pump NEMA Frame L2 D1 (max.) Motor Pump/Motor
Type HP ODP TEFC ODP TEFC L1 ODP TEFC ODP TEFC L3 L4 L5 L6 M ODP TEFC ODP TEFC D2 Pump ODP TEFC ODP TEFC ODP TEFC ODP TEFC
Stages 1Ø 1Ø 3Ø 3Ø 1Ø 1Ø 3Ø 3Ø (Ref.) 1Ø 1Ø 3Ø 3Ø Only 1Ø 1Ø 3Ø 3Ø 1Ø 1Ø 3Ø 3Ø
1SV-02 13.27 9.16 9.29 9.16 9.29 - - 12.29 12.29 5.19 6.19 6.19 6.19 6.19 4.13 25 21 21 19 19 46 46 44 44
1SV-03 0.5 13.27 9.16 9.29 9.16 9.29 - - 12.29 12.29 5.19 6.19 6.19 6.19 6.19 4.13 26 21 21 19 19 47 47 45 45
1SV-04 14.06 9.16 9.29 9.16 9.29 - - 13.07 13.07 5.19 6.19 6.19 6.19 6.19 4.13 27 21 21 19 19 48 48 46 46
1SV-05 14.85 9.16 9.29 9.16 9.29 - - 13.86 13.86 5.19 6.19 6.19 6.19 6.19 4.13 28 21 21 19 19 49 49 47 47
1SV-06 15.63 10.79 9.91 9.16 9.29 - - 14.65 14.65 5.19 6.19 6.19 6.19 6.19 4.13 28 27 29 21 21 55 57 49 49
1SV-07 0.75 16.42 10.79 9.91 9.16 9.29 - - 15.44 15.44 5.19 6.19 6.19 6.19 6.19 4.13 29 27 29 21 21 56 58 50 50
1SV-08 17.21 10.79 9.91 9.16 9.29 17.21 8.94 16.22 16.22 5.19 6.19 6.19 6.19 6.19 4.13 30 27 29 21 21 57 59 51 51
1SV-09 1 18.00 10.66 11.19 9.16 9.29 18.00 9.72 17.01 17.01 5.74 6.19 7.19 6.19 6.19 4.13 31 32 40 23 23 63 71 54 54
1SV-10 18.78 10.66 11.19 9.16 9.29 18.78 10.51 17.80 17.80 5.74 6.19 7.19 6.19 6.19 4.13 32 32 40 23 23 64 72 55 55
1SV-11 19.57 10.67 11.19 10.66 9.91 19.57 11.30 18.59 18.59 5.74 6.19 7.19 6.19 6.19 4.72 33 32 40 30 28 65 73 63 61
1SV-12 20.36 10.67 11.19 10.66 9.91 20.36 12.09 19.37 19.37 5.74 6.19 7.19 6.19 6.19 4.72 34 32 40 30 28 66 74 64 62
1SV-13 1.5 21.14 10.67 11.19 10.66 9.91 21.14 12.87 20.16 20.16 5.74 6.19 7.19 6.19 6.19 4.72 35 32 40 30 28 67 75 65 63
1SV-14 21.93 10.67 11.19 10.66 9.91 21.93 13.66 20.95 20.95 5.74 6.19 7.19 6.19 6.19 4.72 36 32 40 30 28 68 76 66 64
1SV-15 22.72 10.67 11.19 10.66 9.91 22.72 14.45 21.74 21.74 5.74 6.19 7.19 6.19 6.19 4.72 37 32 40 30 28 69 77 67 65
1SV-16 56C 23.51 11.18 12.06 11.16 10.79 23.51 15.24 22.52 22.52 5.74 7.19 7.19 6.19 6.19 4.72 38 43 51 32 33 81 89 70 71
1SV-17 24.29 11.18 12.06 11.16 10.79 24.29 16.02 23.31 23.31 5.74 7.19 7.19 6.19 6.19 4.72 38 43 51 32 33 81 89 70 71
1SV-18 2 25.08 11.18 12.06 11.16 10.79 25.08 16.81 24.10 24.10 5.74 7.19 7.19 6.19 6.19 4.72 39 43 51 32 33 82 90 71 72
1SV-19 25.87 11.18 12.06 11.16 10.79 25.87 17.60 - 24.89 5.74 7.19 7.19 6.19 6.19 4.72 40 43 51 32 33 83 91 72 73
1SV-20 26.66 11.18 12.06 11.16 10.79 26.66 18.39 - 25.67 5.74 7.19 7.19 6.19 6.19 4.72 41 43 51 32 33 84 92 73 74
1SV-21 27.44 11.57 13.44 11.18 11.16 27.44 19.17 - 26.46 5.75 6.50 7.19 7.16 7.19 5.51 42 49 64 41 44 91 106 83 86
1SV-22 28.23 11.57 13.44 11.18 11.16 28.23 19.96 - 27.25 5.75 6.50 7.19 7.16 7.19 5.51 43 49 64 41 44 92 107 84 87
1SV-23 29.02 11.57 13.44 11.18 11.16 29.02 20.75 - 28.03 5.75 6.50 7.19 7.16 7.19 5.51 45 49 64 41 44 94 109 86 89
1SV-24 29.81 11.57 13.44 11.18 11.16 29.81 21.54 - 28.82 5.75 6.50 7.19 7.16 7.19 5.51 46 49 64 41 44 95 110 87 90
1SV-25 3 30.59 11.57 13.44 11.18 11.16 30.59 22.32 - 29.61 5.75 6.50 7.19 7.16 7.19 5.51 47 49 64 41 44 96 111 88 91
1SV-26 31.38 11.57 13.44 11.18 11.16 31.38 23.11 - 30.40 5.75 6.50 7.19 7.16 7.19 5.51 47 49 64 41 44 96 111 88 91
1SV-27 32.17 11.57 13.44 11.18 11.16 32.17 23.90 - 31.18 5.75 6.50 7.19 7.16 7.19 5.51 48 49 64 41 44 97 112 89 92
1SV-28 32.96 11.57 13.44 11.18 11.16 32.96 24.68 - 31.97 5.75 6.50 7.19 7.16 7.19 5.51 49 49 64 41 44 98 113 90 93
1SV-29 34.14 11.57 13.44 11.18 11.16 34.14 25.47 - 33.15 5.75 6.50 7.19 7.16 7.19 5.51 50 49 64 41 44 99 114 91 94
1SV-30 34.53 11.57 13.44 11.18 11.16 - - - 33.55 5.75 6.50 7.19 7.16 7.19 5.51 51 49 64 41 44 100 115 92 95
All
dimensions
are in inches
(mm).
1SV SERIES — 60Hz, 3500 RPM ODP/TEFC Enclosures
Dimensions and Weights 1SV Series 3500 RPM 60 Hz

PAGE 27
Commercial Water
Goulds Water Technology
13
12
10
14
9
8
7
6
5
4
3
2
30
28
22
18
15
17
20
19
11
24
26
27
29
25
23
21
TOTAL STAGES 1SV 60Hz
3500 RPM
MINIMUM FLOW RATE: 2 GPM [½ m3/hr]
Performance Curve 1SV 3500 RPM 60 Hz

PAGE 28
Commercial Water
Goulds Water Technology
Motor Dimensions (in) Weight (lbs.)
Pump NEMA Frame L2 D1 (max.) Motor Pump/Motor
Type HP ODP TEFC ODP TEFC L1 ODP TEFC ODP TEFC L3 L4 L5 L6 M ODP TEFC ODP TEFC D2 Pump ODP TEFC ODP TEFC ODP TEFC ODP TEFC
Stages 1Ø 1Ø 3Ø 3Ø 1Ø 1Ø 3Ø 3Ø (Ref.) 1Ø 1Ø 3Ø 3Ø Only 1Ø 1Ø 3Ø 3Ø 1Ø 1Ø 3Ø 3Ø
3SV-02 0.5 13.27 9.16 9.29 9.16 9.29 - - 12.29 12.29 5.19 6.19 6.19 6.19 6.19 4.13 24 21 21 19 19 45 45 43 43
3SV-03 13.27 9.16 9.29 9.16 9.29 - - 12.29 12.29 5.19 6.19 6.19 6.19 6.19 4.13 25 21 21 19 19 46 46 44 44
3SV-04 0.75 14.06 10.79 9.91 9.16 9.29 - - 13.07 13.07 5.19 6.19 6.19 6.19 6.19 4.13 26 27 29 21 21 53 55 47 47
3SV-05 1 14.85 10.66 11.19 9.16 9.29 - - 13.86 13.86 5.74 6.19 7.19 6.19 6.19 4.13 27 32 40 23 23 59 67 50 50
3SV-06 15.63 10.67 11.19 10.66 9.91 - - 14.65 14.65 5.74 6.19 7.19 6.19 6.19 4.72 28 32 40 30 28 60 68 58 56
3SV-07 1.5 16.42 10.67 11.19 10.66 9.91 - - 15.44 15.44 5.74 6.19 7.19 6.19 6.19 4.72 30 32 40 30 28 62 70 60 58
3SV-08 17.21 10.67 11.19 10.66 9.91 17.21 8.94 16.22 16.22 5.74 6.19 7.19 6.19 6.19 4.72 31 32 40 30 28 63 71 61 59
3SV-09 56C 18.00 11.18 12.06 11.16 10.79 18.00 9.72 17.01 17.01 5.74 7.19 7.19 6.19 6.19 4.72 32 43 51 32 33 75 83 64 65
3SV-10 2 18.78 11.18 12.06 11.16 10.79 18.78 10.51 17.80 17.80 5.74 7.19 7.19 6.19 6.19 4.72 33 43 51 32 33 76 84 65 66
3SV-11 19.57 11.18 12.06 11.16 10.79 19.57 11.30 18.59 18.59 5.74 7.19 7.19 6.19 6.19 4.72 34 43 51 32 33 77 85 66 67
3SV-12 20.36 11.57 13.44 11.18 11.16 20.36 12.09 19.37 19.37 5.75 6.50 7.19 7.16 7.19 5.51 35 49 64 41 44 84 99 76 79
3SV-13 21.14 11.57 13.44 11.18 11.16 21.14 12.87 20.16 20.16 5.75 6.50 7.19 7.16 7.19 5.51 36 49 64 41 44 85 100 77 80
3SV-14 3 21.93 11.57 13.44 11.18 11.16 21.93 13.66 20.95 20.95 5.75 6.50 7.19 7.16 7.19 5.51 37 49 64 41 44 86 101 78 81
3SV-15 22.72 11.57 13.44 11.18 11.16 22.72 14.45 - 21.74 5.75 6.50 7.19 7.16 7.19 5.51 38 49 64 41 44 87 102 79 82
3SV-16 23.51 11.57 13.44 11.18 11.16 23.51 15.24 - 22.52 5.75 6.50 7.19 7.16 7.19 5.51 39 49 64 41 44 88 103 80 83
3SV-17 24.99 13.93 15.43 12.55 13.93 24.99 16.02 - 24.01 6.87 8.88 8.86 9.02 8.86 5.51 42 81 92 62 69 123 134 104 111
3SV-18 25.78 13.93 15.43 12.55 13.93 25.78 16.81 - 24.80 6.87 8.88 8.86 9.02 8.86 5.51 43 81 92 62 69 124 135 105 112
3SV-19 26.57 13.93 15.43 12.55 13.93 26.57 17.60 - 25.59 6.87 8.88 8.86 9.02 8.86 5.51 43 81 92 62 69 124 135 105 112
3SV-20 27.36 13.93 15.43 12.55 13.93 27.36 18.39 - 26.37 6.87 8.88 8.86 9.02 8.86 5.51 44 81 92 62 69 125 136 106 113
3SV-21 28.14 13.93 15.43 12.55 13.93 28.14 19.17 - 27.16 6.87 8.88 8.86 9.02 8.86 5.51 45 81 92 62 69 126 137 107 114
3SV-22 5 184TC 182TC 184TC 28.93 13.93 15.43 12.55 13.93 28.93 19.96 - 27.95 6.87 8.88 8.86 9.02 8.86 5.51 46 81 92 62 69 127 138 108 115
3SV-23 29.72 13.93 15.43 12.55 13.93 29.72 20.75 - 28.73 6.87 8.88 8.86 9.02 8.86 5.51 47 81 92 62 69 128 139 109 116
3SV-24 30.51 13.93 15.43 12.55 13.93 - - - 29.52 6.87 8.88 8.86 9.02 8.86 5.51 48 81 92 62 69 129 140 110 117
3SV-25 31.29 13.93 15.43 12.55 13.93 - - - 30.31 6.87 8.88 8.86 9.02 8.86 5.51 49 81 92 62 69 130 141 111 118
3SV-26 32.08 13.93 15.43 12.55 13.93 - - - 31.10 6.87 8.88 8.86 9.02 8.86 5.51 50 81 92 62 69 131 142 112 119
3SV-27 32.47 13.93 15.43 12.55 13.93 - - - 31.49 6.87 8.88 8.86 9.02 8.86 5.51 52 81 92 62 69 133 144 114 121
3SV-28 33.26 13.88 15.53 13.93 15.43 - - - 32.28 8.05 8.89 10.62 8.88 8.86 5.51 53 100 120 75 85 153 173 128 138
3SV-29 7.5 213TC 184TC 34.44 13.88 15.53 13.93 15.43 - - - 33.46 8.05 8.89 10.62 8.88 8.86 5.51 54 100 120 75 85 154 174 129 139
3SV-30 35.23 13.88 15.53 13.93 15.43 - - - 34.25 8.05 8.89 10.62 8.88 8.86 5.51 55 100 120 75 85 155 175 130 140
All
dimensions
are in inches
(mm).
3SV SERIES — 60Hz, 3500 RPM ODP/TEFC Enclosures
Dimensions and Weights 3SV Series 3500 RPM 60 Hz

PAGE 29
Commercial Water
Goulds Water Technology
13
12
10
9
21
8
7
19
6
5
17
4
3
15
2
30
28
22
14
16
20
18
11
23
24
26
27
29
TOTAL STAGES 3SV 60Hz
3500 RPM
MINIMUM FLOW RATE: 3 GPM [.68 m3/hr]
Performance Curve 3SV 3500 RPM 60 Hz

PAGE 30
Commercial Water
Goulds Water Technology
Motor Dimensions (in) Weight (lbs.)
Pump NEMA Frame L2 D1 (max.) Motor Pump/Motor
Type HP ODP TEFC ODP TEFC L1 ODP TEFC ODP TEFC L3 L4 L5 L6 M ODP TEFC ODP TEFC D2 Pump ODP TEFC ODP TEFC ODP TEFC ODP TEFC
Stages 1Ø 1Ø 3Ø 3Ø 1Ø 1Ø 3Ø 3Ø (Ref.) 1Ø 1Ø 3Ø 3Ø Only 1Ø 1Ø 3Ø 3Ø 1Ø 1Ø 3Ø 3Ø
5SV-02 0.75 13.86 10.79 9.91 9.16 9.29 - - 12.88 12.88 5.19 6.19 6.19 6.19 6.19 4.13 25 27 29 21 21 52 54 46 46
5SV-03 1 13.86 10.66 11.19 9.16 9.29 - - 12.88 12.88 5.74 6.19 7.19 6.19 6.19 4.13 26 32 40 23 23 58 66 49 49
5SV-04 1.5 14.85 10.67 11.19 10.66 9.91 - - 13.86 13.86 5.74 6.19 7.19 6.19 6.19 4.72 28 32 40 30 28 60 68 58 56
5SV-05 15.83 10.67 11.19 10.66 9.91 - - 14.85 14.85 5.74 6.19 7.19 6.19 6.19 4.72 29 32 40 30 28 61 69 59 57
5SV-06 2 56C 16.81 11.18 12.06 11.16 10.79 - - 15.83 15.83 5.74 7.19 7.19 6.19 6.19 4.72 30 43 51 32 33 73 81 62 63
5SV-07 17.80 11.18 12.06 11.16 10.79 17.80 9.53 16.81 16.81 5.74 7.19 7.19 6.19 6.19 4.72 31 43 51 32 33 74 82 63 64
5SV-08 18.78 11.57 13.44 11.18 11.16 18.78 10.51 17.80 17.80 5.75 6.50 7.19 7.16 7.19 5.51 33 49 64 41 44 82 97 74 77
5SV-09 3 19.77 11.57 13.44 11.18 11.16 19.77 11.50 18.78 18.78 5.75 6.50 7.19 7.16 7.19 5.51 33 49 64 41 44 82 97 74 77
5SV-10 20.75 11.57 13.44 11.18 11.16 20.75 12.48 19.77 19.77 5.75 6.50 7.19 7.16 7.19 5.51 34 49 64 41 44 83 98 75 78
5SV-11 22.44 13.93 15.43 12.55 13.93 22.44 13.46 21.45 21.45 6.87 8.88 8.86 9.02 8.86 5.51 37 81 92 62 69 118 129 99 106
5SV-12 23.42 13.93 15.43 12.55 13.93 23.42 14.45 22.44 22.44 6.87 8.88 8.86 9.02 8.86 5.51 38 81 92 62 69 119 130 100 107
5SV-13 24.40 13.93 15.43 12.55 13.93 24.40 15.43 23.42 23.42 6.87 8.88 8.86 9.02 8.86 5.51 40 81 92 62 69 121 132 102 109
5SV-14 5 184TC 182TC 184TC 25.39 13.93 15.43 12.55 13.93 25.39 16.42 24.40 24.40 6.87 8.88 8.86 9.02 8.86 5.51 40 81 92 62 69 121 132 102 109
5SV-15 26.37 13.93 15.43 12.55 13.93 26.37 17.40 - 25.39 6.87 8.88 8.86 9.02 8.86 5.51 41 81 92 62 69 122 133 103 110
5SV-16 27.36 13.93 15.43 12.55 13.93 27.36 18.39 - 26.37 6.87 8.88 8.86 9.02 8.86 5.51 43 81 92 62 69 124 135 105 112
5SV-17 28.54 13.93 15.43 12.55 13.93 28.54 19.37 - 27.55 6.87 8.88 8.86 9.02 8.86 5.51 45 81 92 62 69 126 137 107 114
5SV-18 29.33 13.88 15.53 13.93 15.43 29.33 20.35 - 28.34 8.05 8.89 10.62 8.88 8.86 5.51 46 100 120 75 85 146 166 121 131
5SV-19 30.51 13.88 15.53 13.93 15.43 30.51 21.34 - 29.52 8.05 8.89 10.62 8.88 8.86 5.51 47 100 120 75 85 147 167 122 132
5SV-20 31.69 13.88 15.53 13.93 15.43 31.69 22.32 - 30.70 8.05 8.89 10.62 8.88 8.86 5.51 48 100 120 75 85 148 168 123 133
5SV-21 32.28 13.88 15.53 13.93 15.43 32.28 23.31 - 31.29 8.05 8.89 10.62 8.88 8.86 5.51 49 100 120 75 85 149 169 124 134
5SV-22 7.5 213TC 184TC 33.34 13.88 15.53 13.93 15.43 33.34 24.29 - 32.36 8.05 8.89 10.62 8.88 8.86 5.51 50 100 120 75 85 150 170 125 135
5SV-23 34.25 13.88 15.53 13.93 15.43 34.25 25.28 - 33.26 8.05 8.89 10.62 8.88 8.86 5.51 51 100 120 75 85 151 171 126 136
5SV-24 35.31 13.88 15.53 13.93 15.43 - - - 34.33 8.05 8.89 10.62 8.88 8.86 5.51 53 100 120 75 85 153 173 128 138
5SV-25 36.21 13.88 15.53 13.93 15.43 - - - 35.23 8.05 8.89 10.62 8.88 8.86 5.51 53 100 120 75 85 153 173 128 138
5SV-26 37.28 13.88 15.53 13.93 15.43 - - - 36.29 8.05 8.89 10.62 8.88 8.86 5.51 54 100 120 75 85 154 174 129 139
5SV-27 10 215TC 213TC 215TC 38.84 16.63 16.68 15.55 15.51 - - - 37.86 8.77 10.62 10.18 10.18 10.28 5.51 62 132 145 107 122 194 207 169 184
All
dimensions
are in inches
(mm).
5SV SERIES — 60Hz, 3500 RPM ODP/TEFC Enclosures
Dimensions and Weights 5SV Series 3500 RPM 60 Hz

PAGE 31
Commercial Water
Goulds Water Technology
13
12
10
9
8
7
6
5
4
3
2
21
14
16
15
20
22
24
17
19
11
23
25
26
27
TOTAL STAGES 5SV 60Hz
3500 RPM
MINIMUM FLOW RATE: 7 GPM [1.6 m3/hr]
18
Performance Curve 5SV 3500 RPM 60 Hz

PAGE 32
Commercial Water
Goulds Water Technology
Motor Dimensions (in) Weight (lbs.)
Pump NEMA Frame L2 D1 (max.) Motor Pump/Motor
Type HP ODP TEFC ODP TEFC L1 ODP TEFC ODP TEFC L3 L4 L5 L6 M ODP TEFC ODP TEFC D2 Pump ODP TEFC ODP TEFC ODP TEFC ODP TEFC
Stages 1Ø 1Ø 3Ø 3Ø 1Ø 1Ø 3Ø 3Ø (Ref.) 1Ø 1Ø 3Ø 3Ø Only 1Ø 1Ø 3Ø 3Ø 1Ø 1Ø 3Ø 3Ø
10SV-01 0.75 16.56 10.79 9.91 9.16 9.29 - - 16.17 16.17 5.19 6.19 6.19 6.19 6.19 4.13 36 27 29 21 21 63 65 57 57
10SV-02 2 56C 16.56 11.18 12.06 11.16 10.79 - - 16.17 16.17 5.74 7.19 7.19 6.19 6.19 4.72 38 43 51 32 33 81 89 70 71
10SV-03 3 17.82 11.57 13.44 11.18 11.16 - - 17.43 17.43 5.75 6.50 7.19 7.16 7.19 5.51 40 49 64 41 44 89 104 81 84
10SV-04 19.58 13.93 15.43 12.55 13.93 - - 19.19 19.19 6.87 8.88 8.86 9.02 8.86 5.51 46 81 92 62 69 127 138 108 115
10SV-05 5 184TC 182TC 184TC 20.84 13.93 15.43 12.55 13.93 20.84 10.20 20.45 20.45 6.87 8.88 8.86 9.02 8.86 5.51 48 81 92 62 69 129 140 110 117
10SV-06 22.10 13.93 15.43 12.55 13.93 22.10 11.46 21.71 21.71 6.87 8.88 8.86 9.02 8.86 5.51 50 81 92 62 69 131 142 112 119
10SV-07 23.36 13.88 15.53 13.93 15.43 23.36 12.72 22.97 22.97 8.05 8.89 10.62 8.88 8.86 5.51 52 100 120 75 85 152 172 127 137
10SV-08 7.5 213TC 184TC 24.62 13.88 15.53 13.93 15.43 24.62 13.98 24.22 24.22 8.05 8.89 10.62 8.88 8.86 5.51 54 100 120 75 85 154 174 129 139
10SV-09 25.88 13.88 15.53 13.93 15.43 25.88 15.24 25.48 25.48 8.05 8.89 10.62 8.88 8.86 5.51 56 100 120 75 85 156 176 131 141
10SV-10 27.71 16.63 16.68 15.55 15.51 27.71 16.50 - 27.31 8.77 10.62 10.18 10.18 10.28 5.51 66 132 145 107 122 198 211 173 188
10SV-11 28.97 16.63 16.68 15.55 15.51 28.97 17.76 - 28.57 8.77 10.62 10.18 10.18 10.28 5.51 68 132 145 107 122 200 213 175 190
10SV-12 10 215TC 213TC 215TC 29.44 16.63 16.68 15.55 15.51 29.44 19.02 - 29.05 8.77 10.62 10.18 10.18 10.28 5.51 70 132 145 107 122 202 215 177 192
10SV-13 31.51 16.63 16.68 15.55 15.51 31.51 20.28 - 31.11 8.77 10.62 10.18 10.18 10.28 5.51 75 132 145 107 122 207 220 182 197
10SV-14 32.85 16.63 16.68 15.55 15.51 32.85 21.54 - 32.45 8.77 10.62 10.18 10.18 10.28 5.51 77 132 145 107 122 209 222 184 199
10SV-15 34.66 - - 15.55 16.57 - - - 34.26 9.22 - - 10.18 10.28 5.51 84 - - 125 195 - - 209 279
10SV-16 35.92 - - 15.55 16.57 - - - 35.52 9.22 - - 10.18 10.28 5.51 86 - - 125 195 - - 211 281
10SV-17 15 - 215TC 254TC 37.18 - - 15.55 16.57 - - - 36.78 9.22 - - 10.18 10.28 5.51 88 - - 125 195 - - 213 283
10SV-18 38.44 - - 15.55 16.57 - - - 38.04 9.22 - - 10.18 10.28 5.51 90 - - 125 195 - - 215 285
10SV-19 39.78 - - 15.55 16.57 - - - 39.38 9.22 - - 10.18 10.28 5.51 92 - - 125 195 - - 217 287
10SV-20 20 254TC 256TC 40.96 - - 16.66 20.08 - - - 40.56 9.5 - - 10.18 13.13 5.51 94 - - 144 285 - - 238 379
All dimensions are in inches (mm).
10SV SERIES — 60Hz, 3500 RPM ODP/TEFC Enclosures
Dimensions and Weights 10SV Series 3500 RPM 60 Hz

PAGE 33
Commercial Water
Goulds Water Technology
13
12
10
9
8
7
6
5
4
3
2
18
15
17
16
14
11
19
20
TOTAL STAGES
10SV 60Hz
3500 RPM
MINIMUM FLOW RATE: 9 GPM [2 m3/hr]
1
Performance Curve 10SV 3500 RPM 60 Hz

PAGE 34
Commercial Water
Goulds Water Technology
Motor Dimensions (in) Weight (lbs.)
Pump NEMA Frame L2 D1 (max.) Motor Pump/Motor
Type HP ODP TEFC ODP TEFC L1 ODP TEFC ODP TEFC L3 L4 L5 L6 M ODP TEFC ODP TEFC D2 Pump ODP TEFC ODP TEFC ODP TEFC ODP TEFC
Stages 1Ø 1Ø 3Ø 3Ø 1Ø 1Ø 3Ø 3Ø (Ref.) 1Ø 1Ø 3Ø 3Ø Only 1Ø 1Ø 3Ø 3Ø 1Ø 1Ø 3Ø 3Ø
15SV-01 2 56C 18.61 11.18 12.06 11.16 10.79 - - 18.21 18.21 5.74 7.19 7.19 6.19 6.19 4.72 38 43 51 32 33 81 89 70 71
15SV-02 5 184TC 182TC 184TC 18.71 13.93 15.43 12.55 13.93 - - 18.32 18.32 6.87 8.88 8.86 9.02 8.86 5.51 44 81 92 62 69 125 136 106 113
15SV-03 20.60 13.93 15.43 12.55 13.93 - - 20.21 20.21 6.87 8.88 8.86 9.02 8.86 5.51 47 81 92 62 69 128 139 109 116
15SV-04 7.5 213TC 184TC 22.49 13.88 15.53 13.93 15.43 22.49 11.85 22.10 22.10 8.05 8.89 10.62 8.88 8.86 5.51 50 100 120 75 85 150 170 125 135
15SV-05 10 215TC 213TC 215TC 24.95 16.63 16.68 15.55 15.51 24.95 13.74 24.56 24.56 8.77 10.62 10.18 10.18 10.28 5.51 59 132 145 107 122 191 204 166 181
15SV-06 26.86 16.63 16.68 15.55 15.51 26.86 15.63 26.47 26.47 8.77 10.62 10.18 10.18 10.28 5.51 66 132 145 107 122 198 211 173 188
15SV-07 29.38 - - 15.55 16.57 29.38 17.52 28.99 28.99 9.22 - - 10.18 10.28 5.51 74 - - 125 195 - - 199 269
15SV-08 15 215TC 254TC 31.27 - - 15.55 16.57 31.27 19.41 - 30.88 9.22 - - 10.18 10.28 5.51 76 - - 125 195 - - 201 271
15SV-09 33.16 - - 15.55 16.57 33.16 21.30 - 32.77 9.22 - - 10.18 10.28 5.51 79 - - 125 195 - - 204 274
15SV-10 35.05 - - 16.66 20.08 35.05 23.19 - 34.66 9.5 - - 10.18 13.13 5.51 83 - - 144 285 - - 227 368
15SV-11 20 - 256TC 36.94 - - 16.66 20.08 36.94 25.08 - 36.55 9.5 - - 10.18 13.13 5.51 86 - - 144 285 - - 230 371
15SV-12 254TC 38.83 - - 16.66 20.08 - - - 38.44 9.5 - - 10.18 13.13 5.51 89 - - 144 285 - - 233 374
15SV-13 41.35 - - 21.44 19.54 - - - 40.96 12.94 - - 11.63 12.94 5.51 100 - - 185 283 - - 285 383
15SV-14 25 284TC 43.24 - - 21.44 19.54 - - - 42.85 12.94 - - 11.63 12.94 5.51 103 - - 185 283 - - 288 386
15SV-15 45.13 - - 21.44 19.54 - - - 44.74 12.94 - - 11.63 12.94 5.51 106 - - 185 283 - - 291 389
All dimensions are in inches (mm).
15SV SERIES — 60Hz, 3500 RPM ODP/TEFC Enclosures
Dimensions and Weights 15SV Series 3500 RPM 60 Hz

PAGE 35
Commercial Water
Goulds Water Technology
15
14
13
12
11
10
9
8
7
6
5
4
3
1
2
15SV 60Hz
3500 RPM
MINIMUM FLOW RATE: 18 GPM [4.1 m3/hr]
TOTAL STAGES
Performance Curve 15SV 3500 RPM 60 Hz

PAGE 36
Commercial Water
Goulds Water Technology
Motor Dimensions (in) Weight (lbs.)
Pump NEMA Frame L2 D1 (max.) Motor Pump/Motor
Type HP ODP TEFC ODP TEFC L1 ODP TEFC ODP TEFC L3 L4 L5 L6 M ODP TEFC ODP TEFC D2 Pump ODP TEFC ODP TEFC ODP TEFC ODP TEFC
Stages 1Ø 1Ø 3Ø 3Ø 1Ø 1Ø 3Ø 3Ø (Ref.) 1Ø 1Ø 3Ø 3Ø Only 1Ø 1Ø 3Ø 3Ø 1Ø 1Ø 3Ø 3Ø
22SV-01 3 56C 18.61 11.57 13.44 11.18 11.16 - - 18.21 18.21 5.75 6.50 7.19 7.16 7.19 5.51 39 49 64 41 44 88 103 80 83
22SV-02 5 184TC 182TC 184TC 18.71 13.93 15.43 12.55 13.93 - - 18.32 18.32 6.87 8.88 8.86 9.02 8.86 5.51 45 81 92 62 69 126 137 107 114
22SV-03 7.5 213TC 184TC 20.60 13.88 15.53 13.93 15.43 - - 20.21 20.21 8.05 8.89 10.62 8.88 8.86 5.51 48 100 120 75 85 148 168 123 133
22SV-04 10 215TC 213TC 215TC 23.06 16.63 16.68 15.55 15.51 23.06 11.85 22.67 22.67 8.77 10.62 10.18 10.18 10.28 5.51 58 132 145 107 122 190 203 165 180
22SV-05 25.60 - - 15.55 16.57 25.60 13.74 25.21 25.21 9.22 - - 10.18 10.28 5.51 66 - - 125 195 - - 191 261
22SV-06 15 215TC 254TC 27.49 - - 15.55 16.57 27.49 15.63 27.10 27.10 9.22 - - 10.18 10.28 5.51 69 - - 125 195 - - 194 264
22SV-07 29.38 - - 15.55 16.57 29.38 17.52 28.99 28.99 9.22 - - 10.18 10.28 5.51 72 - - 125 195 - - 197 267
22SV-08 20 - 256TC 31.27 - - 16.66 20.08 31.27 19.41 - 30.88 9.50 - - 10.18 13.13 5.51 75 - - 144 285 - - 219 360
22SV-09 33.16 - - 16.66 20.08 33.16 21.30 - 32.77 9.50 - - 10.18 13.13 5.51 77 - - 144 285 - - 221 362
22SV-10 254TC 35.68 - - 21.44 19.54 35.68 23.19 - 35.29 12.94 - - 11.63 12.94 5.51 89 - - 185 283 - - 274 372
22SV-11 25 284TC 37.57 - - 21.44 19.54 37.57 25.08 - 37.18 12.94 - - 11.63 12.94 5.51 92 - - 185 283 - - 277 375
22SV-12 39.46 - - 21.44 19.54 - - - 39.07 12.94 - - 11.63 12.94 5.51 95 - - 185 283 - - 280 378
All dimensions are in inches (mm).
22SV SERIES — 60Hz, 3500 RPM ODP/TEFC Enclosures
Dimensions and Weights 22SV Series 3500 RPM 60 Hz

PAGE 37
Commercial Water
Goulds Water Technology
12
MINIMUM FLOW RATE: 21 GPM [4.8 m3/hr]
11
10
9
8
7
6
5
4
3
1
2
22SV 60Hz
3500 RPM
TOTAL STAGES
Performance Curve 22SV 3500 RPM 60 Hz

PAGE 38
Commercial Water
Goulds Water Technology
Motor Dimensions (in) Weight (lbs.)
Pump NEMA Frame L2 D1 (max.) Motor Pump/Motor
Type HP ODP TEFC ODP TEFC L1 ODP TEFC ODP TEFC M ODP TEFC ODP TEFC D2 Pump ODP TEFC ODP TEFC ODP TEFC ODP TEFC
Stages 1Ø 1Ø 3Ø 3Ø 1Ø 1Ø 3Ø 3Ø (Ref.) 1Ø 1Ø 3Ø 3Ø Only 1Ø 1Ø 3Ø 3Ø 1Ø 1Ø 3Ø 3Ø
33SV-1 5 184TC 182TC 184TC 20.62 13.93 15.43 12.55 13.93 6.87 8.88 8.86 9.02 8.86 5.51 132 81 92 62 69 213 224 194 201
33SV-2/2 7.5 213TC 184TC 23.58 13.88 15.53 13.93 15.43 8.05 8.89 10.62 8.88 8.86 5.51 143 100 120 75 85 243 263 218 228
33SV-2/1 10 215TC 213TC 215TC 23.58 16.63 16.68 15.55 15.51 8.77 10.62 10.18 10.18 10.28 4.13 143 132 145 107 122 275 288 250 265
33SV-2 23.58 16.63 16.68 15.55 15.51 8.77 10.62 10.18 10.18 10.28 4.13 143 132 145 107 122 275 288 250 265
33SV-3/2 - - 26.54 - - 15.55 16.57 9.22 - - 10.18 10.28 4.72 152 - - 125 195 - - 277 347
33SV-3/1 15 - - 215TC 254TC 26.54 - - 15.55 16.57 9.22 - - 10.18 10.28 4.72 152 - - 125 195 - - 277 347
33SV-3 - - 26.54 - - 15.55 16.57 9.22 - - 10.18 10.28 4.72 152 - - 125 195 - - 277 347
33SV-4/2 - - 29.50 - - 16.66 20.08 9.50 - - 10.18 13.13 5.51 161 - - 144 285 - - 305 446
33SV-4/1 20 - - 254TC 256TC 29.50 - - 16.66 20.08 9.50 - - 10.18 13.13 5.51 161 - - 144 285 - - 305 446
33SV-4 - - 29.50 - - 16.66 20.08 9.50 - - 10.18 13.13 5.51 161 - - 144 285 - - 305 446
33SV-5/2 - - 32.44 - - 21.44 19.54 12.94 - - 11.63 12.94 5.51 172 - - 185 283 - - 357 455
33SV-5/1 25 - - 254TC 284TC 32.44 - - 21.44 19.54 12.94 - - 11.63 12.94 5.51 172 - - 185 283 - - 357 455
33SV-5 - - 32.44 - - 21.44 19.54 12.94 - - 11.63 12.94 5.51 186 - - 185 283 - - 371 469
33SV-6/2 - - 35.40 - - 21.75 19.54 12.21 - - 13.25 12.94 5.51 194 - - 296 382 - - 490 576
33SV-6/1 30 - - 284TC 35.40 - - 21.75 19.54 12.21 - - 13.25 12.94 5.51 194 - - 296 382 - - 490 576
33SV-6 - - 35.40 - - 21.75 19.54 12.21 - - 13.25 12.94 5.51 194 - - 296 382 - - 490 576
33SV-7/2 - - 38.55 - - 21.75 23.18 13.11 - - 13.25 15.56 5.51 204 - - 315 446 - - 519 650
33SV-7/1 - - 286TC 38.55 - - 21.75 23.18 13.11 - - 13.25 15.56 5.51 204 - - 315 446 - - 519 650
33SV-7 40 - -
286TC 38.55 - - 21.75 23.18 13.11 - - 13.25 15.56 5.51 204 - - 315 446 - - 519 650
33SV-8/2 - - 41.30 - - 21.75 23.18 13.11 - - 13.25 15.56 5.51 221 - - 315 446 - - 536 667
33SV-8/1 - - 41.30 - - 21.75 23.18 13.11 - - 13.25 15.56 5.51 229 - - 315 446 - - 544 675
33SV-8 - - 41.30 - - 21.75 23.18 13.11 - - 13.25 15.56 5.51 229 - - 315 446 - - 544 675
33SV-9/2 - - 44.25 - - 22.75 23.19 12.21 - - 13.03 15.69 5.51 238 - - 320 450 - - 558 688
33SV-9/1 - - 44.25 - - 22.75 23.19 12.21 - - 13.03 15.69 5.51 238 - - 320 450 - - 558 688
33SV-9 50 - -
324TSC 326TSC 44.25 - - 22.75 23.19 12.21 - - 13.03 15.69 5.51 238 - - 320 450 - - 558 688
33SV-10/2 - - 47.20 - - 22.75 23.19 12.21 - - 13.03 15.69 5.51 249 - - 320 450 - - 569 699
33SV-10/1 - - 47.20 - - 22.75 23.19 12.21 - - 13.03 15.69 5.51 249 - - 320 450 - - 569 699
33SV-10 - - 47.20 - - 22.75 23.19 12.21 - - 13.03 15.69 5.51 249 - - 320 450 - - 569 699
6.69
(170)
8.66
(220)
Ø .6 (15)
4 HOLES
4.13
(105)
12.60
(320)
DRAIN 1/2 BSP
3/8
NPT
3/8
NPT
1.18
(30)
L1
L2
Ø P
REF
M
REF
FILL
1/2 BSP
VENT
1/2 BSP
Ø 5.88 B.C.
(149.3) Ø .88 (22)
8 HOLES
Ø 5.88 B.C.
(149.3) Ø .88 (22)
8 HOLES
4.94
(125.5)
7.50 (190.5)
4.11
(104.5)
7.50 (190.5)
Ø 5.50 B.C.
(139.7) Ø .75 (19)
4 HOLES
Ø 5.50 B.C.
(139.7) Ø .75 (19)
4 HOLES
7.50
(190.5)
4.11
(104.5)
7.50 (190.5)
11.42
(290)
9.45
(240)
Cast Iron
2½" Class 125 F.F. 316SS
2½" Class 150 R.F.
Cast Iron
2½" Class 250 R.F.
316SS
2½" Class 300 R.F.
All dimensions are in inches (mm).
33SV SERIES — 60Hz, 3500 RPM ODP/TEFC Enclosures
Dimensions and Weights 33SV Series 3500 RPM 60 Hz

PAGE 39
Commercial Water
Goulds Water Technology
0
100
200
300
400
500
600
700
02550 250
Q [US GPM]
TOTAL DYNAMIC HEAD [FEET]
50
60
80
EFF [%]
1100
050
Q [m
3
/h]
0
50
100
150
200
250
300
350
1000
800
900
0
20
40
NPSHr [FEET]
22520017515075 125100
40302010
70
30
10
0
4
6
HP/STAGE
2
10
10/1
10/2
9
9/1
9/2
8
8/1
8/2
7
7/1
7/2
6
6/1
6/2
5
5/1
5/2
4
4/1
4/2
3
3/1
3/2
2
2/1
2/2
1
1/1
TOTAL STAGES/REDUCED STAGES
0
8
10
6
4
2
TOTAL DYNAMIC HEAD [METERS]
NPSHr [METERS]
33SV 60 Hz
3500 RPM
Reduced Dia. Efficiency [%]
Full Dia.
MINIMUM FLOW RATE: 35 GPM [8 m3/hr]
Performance Curve 33SV 3500 RPM 60 Hz

PAGE 40
Commercial Water
Goulds Water Technology
7.48
(190)
9.45
(240)
Ø .6 (15)
4 HOLES
5.5
(140)
14.4
(365)
DRAIN 1/2 BSP
3/8
NPT
3/8
NPT
1.77
(45)
L1
L2
D1
M
REF
FILL
1/2 BSP
VENT
1/2 BSP Ø 6.62 B.C.
(168.2)
Ø .88 (22)
8 HOLES
Ø 6.62 B.C.
(168.2) Ø .88 (22)
8 HOLES
5.69
(144.5)
8.25 (209.5)
5.00 (127)
8.25 (209.5)
Ø 6.00 B.C.
(152.4)
Ø .75 (19)
4 HOLES
Ø 6.00 B.C.
(152.4) Ø .75 (19)
4 HOLES
8.25
(209.5)
Cast Iron
3" Class 125 F.F.
12.40
(315)
10.43
(265)
8.25 (209.5)
5.00 (127)
316SS
3" Class 150 R.F.
Cast Iron
3" Class 250 R.F.
316SS
3" Class 300 R.F.
All dimensions are in inches (mm).
Motor Dimensions (in) Weight (lbs.)
Pump NEMA Frame L2 D1 (max.) Motor Pump/Motor
Type HP ODP TEFC ODP TEFC L1 ODP TEFC ODP TEFC M ODP TEFC ODP TEFC D2 Pump ODP TEFC ODP TEFC ODP TEFC ODP TEFC
Stages 1Ø 1Ø 3Ø 3Ø 1Ø 1Ø 3Ø 3Ø (Ref.) 1Ø 1Ø 3Ø 3Ø Only 1Ø 1Ø 3Ø 3Ø 1Ø 1Ø 3Ø 3Ø
46SV-1 10 213TC 215TC 22.19 16.63 16.68 15.55 15.51 8.77 10.62 10.18 10.18 10.28 4.13 174 132 145 107 122 306 319 281 296
46SV-2/2 - - 25.19 - - 15.55 16.57 9.22 - - 10.18 10.28 4.72 158 - - 125 195 - - 283 353
46SV-2/1 15 - - 215TC 254TC 25.19 - - 15.55 16.57 9.22 - - 10.18 10.28 4.72 158 - - 125 195 - - 283 353
46SV-2 - - 25.19 - - 15.55 16.57 9.22 - - 10.18 10.28 4.72 158 - - 125 195 - - 283 353
46SV-3/2 20 - -
254TC 256TC 28.12 - - 16.66 20.08 9.50 - - 10.18 13.13 5.51 169 - - 144 285 - - 313 454
46SV-3/1 - - 28.12 - - 16.66 20.08 9.50 - - 10.18 13.13 5.51 169 - - 144 285 - - 313 454
46SV-3 25 - - 254TC 284TC 29.63 - - 21.44 19.54 12.94 - - 11.63 12.94 5.51 183 - - 185 283 - - 368 466
46SV-4/2 - - 32.63 - - 21.75 19.54 12.21 - - 13.25 12.94 5.51 192 - - 296 382 - - 488 574
46SV-4/1 30 - - 284TC 286TC 32.63 - - 21.75 19.54 12.21 - - 13.25 12.94 5.51 192 - - 296 382 - - 488 574
46SV-4 - - 32.63 - - 21.75 19.54 12.21 - - 13.25 12.94 5.51 192 - - 296 382 - - 488 574
46SV-5/2 - - 35.56 - - 21.75 23.18 13.11 - - 13.25 15.56 5.51 199 - - 315 446 - - 514 645
46SV-5/1 40 - -
286TC 286TC 35.56 - - 21.75 23.18 13.11 - - 13.25 15.56 5.51 199 - - 315 446 - - 514 645
46SV-5 - - 35.56 - - 21.75 23.18 13.11 - - 13.25 15.56 5.51 199 - - 315 446 - - 514 645
46SV-6/2 - - 38.50 - - 21.75 23.18 13.11 - - 13.25 15.56 5.51 208 - - 315 446 - - 523 654
46SV-6/1 - - 38.00 - - 22.75 23.19 12.21 - - 13.03 15.69 5.51 216 - - 320 450 - - 536 666
46SV-6 50 - - 38.00 - - 22.75 23.19 12.21 - - 13.03 15.69 5.51 216 - - 320 450 - - 536 666
46SV-7/2 - - 40.94 - - 22.75 23.19 12.21 - - 13.03 15.69 5.51 233 - - 320 450 - - 553 683
46SV-7/1 - - 324TSC 326TSC 40.94 - - 22.75 23.19 12.21 - - 13.03 15.69 5.51 233 - - 320 450 - - 553 683
46SV-7 - - 40.94 - - 22.75 30.69 14.95 - - 13.03 19.25 5.51 233 - - 372 689 - - 605 922
46SV-8/2 60 - - 43.94 - - 22.75 30.69 14.95 - - 13.03 19.25 5.51 242 - - 372 689 - - 614 931
46SV-8/1 - - 43.94 - - 22.75 30.69 14.95 - - 13.03 19.25 5.51 242 - - 372 689 - - 614 931
46SV-8 - - 43.94 - - 22.75 30.69 14.95 - - 13.03 19.25 5.51 242 - - 372 689 - - 614 931
46SV-9/2 - - 46.88 - - 24.38 30.69 14.95 - - 15.13 19.25 5.51 253 - - 447 747 - - 700 1000
46SV-9/1 75 - -
364TSC 365TSC 46.88 - - 24.38 30.69 14.95 - - 15.13 19.25 5.51 253 - - 447 747 - - 700 1000
46SV-9 - - 46.88 - - 24.38 30.69 14.95 - - 15.13 19.25 5.51 253 - - 447 747 - - 700 1000
46SV-10/2 - - 49.81 - - 24.38 30.69 14.95 - - 15.13 19.25 5.51 264 - - 447 747 - - 711 1011
46SV SERIES — 60Hz, 3500 RPM ODP/TEFC Enclosures
Dimensions and Weights 46SV Series 3500 RPM 60 Hz

PAGE 41
Commercial Water
Goulds Water Technology
0
100
200
300
400
500
600
700
050 350
Q [US GPM]
TOTAL DYNAMIC HEAD [FEET]
50
60
80
EFF [%]
1100
4
7
8
HP/STAGE
0
Q [m
3
/h]
0
50
100
150
200
250
300
350
1000
800
900
4
12
20
300250200150100
40302010
70
6
5
706050
16
8
1200
NPSHr [FEET]
2
5
6
4
3
TOTAL DYNAMIC HEAD [FEET]
NPSHr [METERS]
TOTAL STAGES/REDUCED STAGES
10/2
9
9/1
9/2
8
8/1
8/2
7
7/1
7/2
6
6/1
6/2
5
5/1
5/2
4
4/1
4/2
3
3/1
3/2
2
2/1
2/2
1
1/1
Reduced Dia.
Efficiency [%]
Full Dia.
46SV 60 Hz
3500 RPM
MINIMUM FLOW RATE: 40 GPM [9 m3/hr]
Performance Curve 46SV 3500 RPM 60 Hz

PAGE 42
Commercial Water
Goulds Water Technology
7.48
(190)
9.45
(240)
Ø .6 (15)
4 HOLES
5.5
(140)
14.4
(365)
DRAIN 1/2 BSP
3/8
NPT
3/8
NPT
1.77
(45)
L1
L2
D1
M
REF
FILL
1/2
BSP
VENT
1/2 BSP
Ø 7.88 B.C.
(200.1)
Ø .88 (22)
8 HOLES
Ø 7.88 B.C.
(200.1)
Ø .88 (22)
8 HOLES
6.94
(176.3)
10.00 (254)
6.18 (157)
10.00 (254)
Ø 7.50 B.C.
(190.5)
Ø .75 (19)
8 HOLES
Ø 7.50 B.C.
(190.5)
Ø 0.75 (19)
8 HOLES
10.00
(254)
Cast Iron
4" Class 250 R.F.
12.40
(315)
10.43
(265)
10.00 (254)
6.18 (157)
316SS
4" Class 300 R.F.
Cast Iron
4" Class 125 F.F.
316SS
4" Class 150 R.F.
All dimensions are in inches (mm).
Motor Dimensions (in) Weight (lbs.)
Pump NEMA Frame L2 D1 (max.) Motor Pump/Motor
Type HP ODP TEFC ODP TEFC L1 ODP TEFC ODP TEFC M ODP TEFC ODP TEFC D2 Pump ODP TEFC ODP TEFC ODP TEFC ODP TEFC
Stages 1Ø 1Ø 3Ø 3Ø 1Ø 1Ø 3Ø 3Ø (Ref.) 1Ø 1Ø 3Ø 3Ø Only 1Ø 1Ø 3Ø 3Ø 1Ø 1Ø 3Ø 3Ø
66SV-1 15 - - 215TC 254TC 23.19 - - 15.56 16.56 9.25 - - 10.19 10.31 5.51 185 - - 128 250 - - 313 435
66SV-2/2 20 - -
254TC 256TC 26.75 - - 15.56 16.56 9.25 - - 10.19 10.31 5.51 196 - - 220 280 - - 416 476
66SV-2/1 - - 26.75 - - 15.56 16.56 9.25 - - 10.19 10.31 5.51 196 - - 220 280 - - 416 476
66SV-2 25 - - 256TC 284TC 28.31 - - 18.00 23.38 13.12 - - 11.63 15.31 5.51 210 - - 240 420 - - 450 630
66SV-3/2 30 - - 31.81 - - 20.12 23.38 13.12 - - 13.25 15.31 5.51 223 - - 325 445 - - 548 668
66SV-3/1 - - 284TC 284TC 31.81 - - 20.12 23.38 13.12 - - 13.25 15.31 5.51 223 - - 325 445 - - 548 668
66SV-3 40 - - 31.81 - - 20.12 23.38 13.12 - - 13.25 15.31 5.51 223 - - 328 448 - - 551 671
66SV-4/2 - - 35.38 - - 20.12 23.38 13.12 - - 13.25 15.31 5.51 234 - - 328 448 - - 562 682
66SV-4/1 - - 34.88 - - 22.50 23.38 13.12 - - 13.25 15.31 5.51 242 - - 382 592 - - 624 834
66SV-4 50 - - 326TSC 326TSC 34.88 - - 22.50 23.38 13.12 - - 13.25 15.31 5.51 242 - - 382 592 - - 624 834
66SV-5/2 - - 38.44 - - 22.50 23.38 13.12 - - 13.25 15.31 5.51 252 - - 382 592 - - 634 844
66SV-5/1 60 - -
326TSC 364TSC 38.44 - - 22.50 27.22 14.96 - - 13.25 19.00 5.51 252 - - 474 736 - - 726 988
66SV-5 - - 38.44 - - 22.50 27.22 14.96 - - 13.25 19.00 5.51 252 - - 474 736 - - 726 988
66SV-6/2 - - 41.94 - - 24.12 27.22 14.96 - - 15.12 19.00 5.51 266 - - 500 762 - - 766 1028
66SV-6/1 75 - - 365TSC 365TSC 41.94 - - 24.12 27.22 14.96 - - 15.12 19.00 5.51 266 - - 500 762 - - 766 1028
66SV-6 - - 41.94 - - 24.12 27.22 14.96 - - 15.12 19.00 5.51 266 - - 500 762 - - 766 1028
66SV SERIES — 60Hz, 3500 RPM ODP/TEFC Enclosures
Dimensions and Weights 66SV Series 3500 RPM 60 Hz

PAGE 43
Commercial Water
Goulds Water Technology
0
100
200
300
400
500
600
700
0 500
Q [US GPM]
TOTAL DYNAMIC HEAD [FEET]
50
60
80
EFF %
6
14
HP/STAGE
0 100
Q [m
3
/h]
0
50
100
150
200
250
800
0
NPSHr [FEET]
300 350200 400100
4020
70
8
8060
45025015050
12
10
20
40
30
10
0
2
12
4
6
8
10
NPSHr [METERS]
TOTAL DYNAMIC HEAD [METERS]
TOTAL STAGES/REDUCED STAGES
6
6/1
6/2
5
5/1
5/2
4
4/1
4/2
3
3/1
3/2
2
2/1
2/2
1
1/1
66SV 60 Hz
3500 RPM
Reduced Dia.
Efficiency [%]
Full Dia.
MINIMUM FLOW RATE: 70 GPM [16 m3/hr]
Performance Curve 66SV 3500 RPM 60 Hz

PAGE 44
Commercial Water
Goulds Water Technology
7.48
(190)
9.45
(240)
Ø .6 (15)
4 HOLES
5.5
(140)
14.4
(365)
DRAIN 1/2 BSP
3/8
NPT
3/8
NPT
1.77
(45)
L1
L2
D1
M
REF
FILL
1/2
BSP
VENT
1/2 BSP
Ø 7.88 B.C.
(200.1)
Ø .88 (22)
8 HOLES
Ø 7.88 B.C.
(200.1)
Ø .88 (22)
8 HOLES
6.94
(176.3)
10.00 (254)
6.18 (157)
10.00 (254)
Ø 7.50 B.C.
(190.5)
Ø .75 (19)
8 HOLES
Ø 7.50 B.C.
(190.5)
Ø 0.75
(19)
8 HOLES
10.00
(254)
Cast Iron
4" Class 250 R.F.
12.40
(315)
10.43
(265)
10.00 (254)
6.18 (157)
316SS
4" Class 300 R.F.
Cast Iron
4" Class 125 F.F.
316SS
4" Class 150 R.F.
All dimensions are in inches (mm).
Motor Dimensions (in) Weight (lbs.)
Pump NEMA Frame L2 D1 (max.) Motor Pump/Motor
Type HP ODP TEFC ODP TEFC L1 ODP TEFC ODP TEFC M ODP TEFC ODP TEFC D2 Pump ODP TEFC ODP TEFC ODP TEFC ODP TEFC
Stages 1Ø 1Ø 3Ø 3Ø 1Ø 1Ø 3Ø 3Ø (Ref.) 1Ø 1Ø 3Ø 3Ø Only 1Ø 1Ø 3Ø 3Ø 1Ø 1Ø 3Ø 3Ø
92SV-1 15 - - 215TC 254TC 23.19 - - 15.56 16.56 9.25 - - 10.19 10.31 5.51 185 - - 128 250 - - 313 435
92SV-2/2 25 - - 256TC 284TC 28.31 - - 18.00 23.38 13.12 - - 11.63 15.31 5.51 210 - - 240 420 - - 450 630
92SV-2/1 30 - -
284TC 284TC 28.31 - - 20.12 23.38 13.12 - - 13.25 15.31 5.51 210 - - 325 445 - - 535 655
92SV-2 - - 28.31 - - 20.12 23.38 13.12 - - 13.25 15.31 5.51 210 - - 325 445 - - 535 655
92SV-3/2 40 - -
284TC 284TC 31.18 - - 20.12 23.38 13.12 - - 13.25 15.31 5.51 223 - - 328 448 - - 551 671
92SV-3/1 - - 31.18 - - 20.12 23.38 13.12 - - 13.25 15.31 5.51 223 - - 328 448 - - 551 671
92SV-3 50 - - 326TSC 326TSC 31.28 - - 22.50 23.38 13.12 - - 13.25 15.31 5.51 231 - - 382 592 - - 613 823
92SV-4/2 - - 34.88 - - 22.50 27.22 13.12 - - 13.25 19.00 5.51 242 - - 474 736 - - 716 978
92SV-4/1 60 - - 326TSC 364TSC 34.88 - - 22.50 27.22 13.12 - - 13.25 19.00 5.51 242 - - 474 736 - - 716 978
92SV-4 - - 34.88 - - 22.50 27.22 13.12 - - 13.25 19.00 5.51 242 - - 474 736 - - 716 978
92SV-5/2 75 - -
365TSC 365TSC 38.44 - - 24.12 27.22 14.96 - - 15.12 19.00 5.51 252 - - 500 762 - - 752 1014
92SV-5/1 - - 38.44 - - 24.12 27.22 14.96 - - 15.12 19.00 5.51 252 - - 500 762 - - 752 1014
92SV SERIES — 60Hz, 3500 RPM ODP/TEFC Enclosures
Dimensions and Weights 92SV Series 3500 RPM 60 Hz

PAGE 45
Commercial Water
Goulds Water Technology
0
100
200
300
400
500
600
700
0 700
TOTAL DYNAMIC HEAD [FEET]
50
60
85
EFF %
6
20
HP/STAGE
0
0
80
100
140
200
220
0
50
NPSHr [FEET]
300 400200 500100
4020
70
8
8060
600
12
10
20
40
30
10
0
2
14
4
6
8
10
160
180
120
60
40
20
12
55
65
75
80
140120100
14
16
18
NPSHr [METERS]
Q [US GPM]
Q [m
3
/h]
TOTAL DYNAMIC HEAD [METERS]
TOTAL STAGES/REDUCED STAGES
5/1
5/2
4
4/1
4/2
3
3/1
3/2
2
2/1
2/2
1
1/1
Reduced Dia.
Efficiency [%]
Full Dia.
92SV 60 Hz
3500 RPM
MINIMUM FLOW RATE: 100 GPM [23 m3/hr]
Performance Curve 92SV 3500 RPM 60 Hz

PAGE 46
Commercial Water
Goulds Water Technology
Motor Dimensions (in) Weight (lbs.)
NEMA Frame L2 D1 (max.) Motor Pump/Motor
Pump HP ODP TEFC ODP TEFC L1 ODP TEFC ODP TEFC L3 L4 L5 L6 M ODP TEFC ODP TEFC D2 Pump ODP TEFC ODP TEFC ODP TEFC ODP TEFC
Type 1Ø 1Ø 3Ø 3Ø 1Ø 1Ø 3Ø 3Ø (Ref.) 1Ø 1Ø 3Ø 3Ø 1Ø 1Ø 3Ø 3Ø 1Ø 1Ø 3Ø 3Ø
125SV-1/0C 15 - - 215TC 254TC 27.30 - - 15.55 16.57 - - - - 9.22 - - 10.18 10.28 4.72 256 - - 125 195 - - 381 451
125SV-2/0C 30 - - 284TC 286TC 34.57 - - 21.75 19.54 - - - - 12.21 - - 13.25 12.94 5.51 289 - - 296 382 - - 585 671
125SV-3/3A 40 - - 286TC 286TC 40.47 - - 21.75 23.18 - - - - 13.11 - - 13.25 15.56 5.51 315 - - 315 446 - - 630 761
125SV-4/3B 50 - - 324TSC 326TSC 46.40 - - 22.75 23.19 - - - - 12.21 - - 13.03 15.69 5.51 355 - - 320 450 - - 675 805
125SV-5/5B 60 - - 324TSC 326TSC 52.30 - - 22.75 30.69 - - - - 14.95 - - 13.03 19.25 5.51 379 - - 372 689 - - 751 1068
125SV-5/0C 75 - - 364TSC 365TSC 52.28 - - 24.38 30.69 - - - - 14.95 - - 15.13 19.25 5.51 379 - - 447 747 - - 826 1126
All dimensions are in inches (mm).
125SV SERIES — 60Hz, 3500 RPM ODP/TEFC Enclosures
Dimensions and Weights 125SV Series 3500 RPM 60 Hz
10.87
(275)
13.00
(330)
Ø .75 (19)
4 HOLES
6.30
(160)
18.90 (480)
DRAIN 1/2 BSP
3/8
NPT
3/8
NPT
1.77
(45)
L1
L2
D1
M
REF
FILL
1/2
BSP
VENT
1/2 BSP
Ø .88 (22)
8 HOLES
9.25 B.C.
(235)
9.25 B.C.
(235) Ø .88 (22)
8 HOLES
8.31(211)
11.00 (280)
7.00 (178)
11.00 (280)
8.50 B.C.
(216)
Ø 0.88 (22)
8 HOLES
8.50 B.C.
(216)
Ø 0.88
(22)
8 HOLES
10.00
(254)
Cast Iron
5" Class 250 R.F.
17.72
(450)
14.96
(380)
10.00 (254)
6.44 (164)
316SS
5" Class 300 R.F.
Cast Iron
5" Class 125 F.F.
316SS
5" Class 150 R.F.

PAGE 47
Commercial Water
Goulds Water Technology
4/3B
5/0C
5/5B
3/3A
1/0C
2/0C
125SV 60Hz
3500 RPM
MINIMUM FLOW RATE: 100 GPM [20 m3/hr]
Performance Curve 125SV 3500 RPM 60 Hz

PAGE 48
Commercial Water
Goulds Water Technology
Motor Dimensions (in) Weight (lbs.)
Pump NEMA Frame L2 D1 (max.) Motor Pump/Motor
Type HP ODP TEFC ODP TEFC L1 ODP TEFC ODP TEFC L3 L4 L5 L6 M ODP TEFC ODP TEFC D2 Pump ODP TEFC ODP TEFC ODP TEFC ODP TEFC
Stages 1Ø 1Ø 3Ø 3Ø 1Ø 1Ø 3Ø 3Ø (Ref.) 1Ø 1Ø 3Ø 3Ø Only 1Ø 1Ø 3Ø 3Ø 1Ø 1Ø 3Ø 3Ø
1SV-02 13.27 9.16 9.29 9.16 9.29 - - 12.29 12.29 5.19 6.19 6.19 6.19 6.19 4.13 25 21 21 19 19 46 46 44 44
1SV-03 13.27 9.16 9.29 9.16 9.29 - - 12.29 12.29 5.19 6.19 6.19 6.19 6.19 4.13 26 21 21 19 19 47 47 45 45
1SV-04 14.06 9.16 9.29 9.16 9.29 - - 13.07 13.07 5.19 6.19 6.19 6.19 6.19 4.13 27 21 21 19 19 48 48 46 46
1SV-05 14.85 9.16 9.29 9.16 9.29 - - 13.86 13.86 5.19 6.19 6.19 6.19 6.19 4.13 28 21 21 19 19 49 49 47 47
1SV-06 15.63 9.16 9.29 9.16 9.29 - - 14.65 14.65 5.19 6.19 6.19 6.19 6.19 4.13 28 21 21 19 19 49 49 47 47
1SV-07 16.42 9.16 9.29 9.16 9.29 - - 15.44 15.44 5.19 6.19 6.19 6.19 6.19 4.13 29 21 21 19 19 50 50 48 48
1SV-08 17.21 9.16 9.29 9.16 9.29 17.21 8.94 16.22 16.22 5.19 6.19 6.19 6.19 6.19 4.13 30 21 21 19 19 51 51 49 49
1SV-09 18.00 9.16 9.29 9.16 9.29 18.00 9.72 17.01 17.01 5.19 6.19 6.19 6.19 6.19 4.13 31 21 21 19 19 52 52 50 50
1SV-10 18.78 9.16 9.29 9.16 9.29 18.78 10.51 17.80 17.80 5.19 6.19 6.19 6.19 6.19 4.13 32 21 21 19 19 53 53 51 51
1SV-11 19.57 9.16 9.29 9.16 9.29 19.57 11.30 18.59 18.59 5.19 6.19 6.19 6.19 6.19 4.13 33 21 21 19 19 54 54 52 52
1SV-12 20.36 9.16 9.29 9.16 9.29 20.36 12.09 19.37 19.37 5.19 6.19 6.19 6.19 6.19 4.13 34 21 21 19 19 55 55 53 53
1SV-13 21.14 9.16 9.29 9.16 9.29 21.14 12.87 20.16 20.16 5.19 6.19 6.19 6.19 6.19 4.13 35 21 21 19 19 56 56 54 54
1SV-14 21.93 9.16 9.29 9.16 9.29 21.93 13.66 20.95 20.95 5.19 6.19 6.19 6.19 6.19 4.13 36 21 21 19 19 57 57 55 55
1SV-15 22.72 9.16 9.29 9.16 9.29 22.72 14.45 21.74 21.74 5.19 6.19 6.19 6.19 6.19 4.13 37 21 21 19 19 58 58 56 56
1SV-16 0.5 56C 23.51 9.16 9.29 9.16 9.29 23.51 15.24 22.52 22.52 5.19 6.19 6.19 6.19 6.19 4.13 38 21 21 19 19 59 59 57 57
1SV-17 24.29 9.16 9.29 9.16 9.29 24.29 16.02 23.31 23.31 5.19 6.19 6.19 6.19 6.19 4.13 38 21 21 19 19 59 59 57 57
1SV-18 25.08 9.16 9.29 9.16 9.29 25.08 16.81 24.10 24.10 5.19 6.19 6.19 6.19 6.19 4.13 39 21 21 19 19 60 60 58 58
1SV-19 25.87 9.16 9.29 9.16 9.29 25.87 17.60 24.89 24.89 5.19 6.19 6.19 6.19 6.19 4.13 40 21 21 19 19 61 61 59 59
1SV-20 26.66 9.16 9.29 9.16 9.29 26.66 18.39 25.67 25.67 5.19 6.19 6.19 6.19 6.19 4.13 41 21 21 19 19 62 62 60 60
1SV-21 27.44 9.16 9.29 9.16 9.29 27.44 19.17 26.46 26.46 5.19 6.19 6.19 6.19 6.19 4.13 42 21 21 19 19 63 63 61 61
1SV-22 28.23 9.16 9.29 9.16 9.29 28.23 19.96 27.25 27.25 5.19 6.19 6.19 6.19 6.19 4.13 43 21 21 19 19 64 64 62 62
1SV-23 29.02 9.16 9.29 9.16 9.29 29.02 20.75 28.03 28.03 5.19 6.19 6.19 6.19 6.19 4.13 45 21 21 19 19 66 66 64 64
1SV-24 29.81 9.16 9.29 9.16 9.29 29.81 21.54 28.82 28.82 5.19 6.19 6.19 6.19 6.19 4.13 46 21 21 19 19 67 67 65 65
1SV-25 30.59 9.16 9.29 9.16 9.29 30.59 22.32 29.61 29.61 5.19 6.19 6.19 6.19 6.19 4.13 47 21 21 19 19 68 68 66 66
1SV-26 31.38 9.16 9.29 9.16 9.29 31.38 23.11 30.40 30.40 5.19 6.19 6.19 6.19 6.19 4.13 47 21 21 19 19 68 68 66 66
1SV-27 32.17 9.16 9.29 9.16 9.29 32.17 23.90 31.18 31.18 5.19 6.19 6.19 6.19 6.19 4.13 48 21 21 19 19 69 69 67 67
1SV-28 32.96 9.16 9.29 9.16 9.29 32.96 24.68 31.97 31.97 5.19 6.19 6.19 6.19 6.19 4.13 49 21 21 19 19 70 70 68 68
1SV-29 34.14 9.16 9.29 9.16 9.29 34.14 25.47 33.15 33.15 5.19 6.19 6.19 6.19 6.19 4.13 50 21 21 19 19 71 71 69 69
1SV-30 34.53 9.16 9.29 9.16 9.29 34.53 26.26 33.55 33.55 5.19 6.19 6.19 6.19 6.19 4.13 51 21 21 19 19 72 72 70 70
All
dimensions
are in inches
(mm).
1SV SERIES — 60Hz, 1750 RPM ODP/TEFC Enclosures
Dimensions and Weights 1SV Series 1750 RPM 60 Hz

PAGE 49
Commercial Water
Goulds Water Technology
13
12
10
9
8
7
6
5
4
3
2
30
28
22
16 15
17
20
14
19
11
24
18
26
27
29
25
23
21
TOTAL STAGES 1SV 60Hz
1750 RPM
MINIMUM FLOW RATE: 1 GPM [.24 m3/hr]
Performance Curve 1SV 1750 RPM 60 Hz

PAGE 50
Commercial Water
Goulds Water Technology
Motor Dimensions (in) Weight (lbs.)
Pump NEMA Frame L2 D1 (max.) Motor Pump/Motor
Type HP ODP TEFC ODP TEFC L1 ODP TEFC ODP TEFC L3 L4 L5 L6 M ODP TEFC ODP TEFC D2 Pump ODP TEFC ODP TEFC ODP TEFC ODP TEFC
Stages 1Ø 1Ø 3Ø 3Ø 1Ø 1Ø 3Ø 3Ø (Ref.) 1Ø 1Ø 3Ø 3Ø Only 1Ø 1Ø 3Ø 3Ø 1Ø 1Ø 3Ø 3Ø
3SV-02 13.27 9.16 9.29 9.16 9.29 - - 12.29 12.29 5.19 6.19 6.19 6.19 6.19 4.13 24 21 21 19 19 45 45 43 43
3SV-03 13.27 9.16 9.29 9.16 9.29 - - 12.29 12.29 5.19 6.19 6.19 6.19 6.19 4.13 25 21 21 19 19 46 46 44 44
3SV-04 14.06 9.16 9.29 9.16 9.29 - - 13.07 13.07 5.19 6.19 6.19 6.19 6.19 4.13 26 21 21 19 19 47 47 45 45
3SV-05 14.85 9.16 9.29 9.16 9.29 - - 13.86 13.86 5.19 6.19 6.19 6.19 6.19 4.13 27 21 21 19 19 48 48 46 46
3SV-06 15.63 9.16 9.29 9.16 9.29 - - 14.65 14.65 5.19 6.19 6.19 6.19 6.19 4.13 28 21 21 19 19 49 49 47 47
3SV-07 16.42 9.16 9.29 9.16 9.29 - - 15.44 15.44 5.19 6.19 6.19 6.19 6.19 4.13 30 21 21 19 19 51 51 49 49
3SV-08 17.21 9.16 9.29 9.16 9.29 17.21 8.94 16.22 16.22 5.19 6.19 6.19 6.19 6.19 4.13 31 21 21 19 19 52 52 50 50
3SV-09 18.00 9.16 9.29 9.16 9.29 18.00 9.72 17.01 17.01 5.19 6.19 6.19 6.19 6.19 4.13 32 21 21 19 19 53 53 51 51
3SV-10 18.78 9.16 9.29 9.16 9.29 18.78 10.51 17.80 17.80 5.19 6.19 6.19 6.19 6.19 4.13 33 21 21 19 19 54 54 52 52
3SV-11 19.57 9.16 9.29 9.16 9.29 19.57 11.30 18.59 18.59 5.19 6.19 6.19 6.19 6.19 4.13 34 21 21 19 19 55 55 53 53
3SV-12 20.36 9.16 9.29 9.16 9.29 20.36 12.09 19.37 19.37 5.19 6.19 6.19 6.19 6.19 4.13 35 21 21 19 19 56 56 54 54
3SV-13 0.5 21.14 9.16 9.29 9.16 9.29 21.14 12.87 20.16 20.16 5.19 6.19 6.19 6.19 6.19 4.13 36 21 21 19 19 57 57 55 55
3SV-14 21.93 9.16 9.29 9.16 9.29 21.93 13.66 20.95 20.95 5.19 6.19 6.19 6.19 6.19 4.13 37 21 21 19 19 58 58 56 56
3SV-15 22.72 9.16 9.29 9.16 9.29 22.72 14.45 21.74 21.74 5.19 6.19 6.19 6.19 6.19 4.13 38 21 21 19 19 59 59 57 57
3SV-16 56C 23.51 9.16 9.29 9.16 9.29 23.51 15.24 22.52 22.52 5.19 6.19 6.19 6.19 6.19 4.13 39 21 21 19 19 60 60 58 58
3SV-17 24.29 9.16 9.29 9.16 9.29 24.29 16.02 23.31 23.31 5.19 6.19 6.19 6.19 6.19 4.13 40 21 21 19 19 61 61 59 59
3SV-18 25.08 9.16 9.29 9.16 9.29 25.08 16.81 24.10 24.10 5.19 6.19 6.19 6.19 6.19 4.13 41 21 21 19 19 62 62 60 60
3SV-19 25.87 9.16 9.29 9.16 9.29 25.87 17.60 24.89 24.89 5.19 6.19 6.19 6.19 6.19 4.13 41 21 21 19 19 62 62 60 60
3SV-20 26.66 9.16 9.29 9.16 9.29 26.66 18.39 25.67 25.67 5.19 6.19 6.19 6.19 6.19 4.13 42 21 21 19 19 63 63 61 61
3SV-21 27.44 9.16 9.29 9.16 9.29 27.44 19.17 26.46 26.46 5.19 6.19 6.19 6.19 6.19 4.13 43 21 21 19 19 64 64 62 62
3SV-22 28.23 9.16 9.29 9.16 9.29 28.23 19.96 27.25 27.25 5.19 6.19 6.19 6.19 6.19 4.13 44 21 21 19 19 65 65 63 63
3SV-23 29.02 9.16 9.29 9.16 9.29 29.02 20.75 28.03 28.03 5.19 6.19 6.19 6.19 6.19 4.13 45 21 21 19 19 66 66 64 64
3SV-24 29.81 9.16 9.29 9.16 9.29 29.81 21.54 28.82 28.82 5.19 6.19 6.19 6.19 6.19 4.13 46 21 21 19 19 67 67 65 65
3SV-25 30.59 9.16 9.29 9.16 9.29 30.59 22.32 29.61 29.61 5.19 6.19 6.19 6.19 6.19 4.13 47 21 21 19 19 68 68 66 66
3SV-26 31.38 10.79 9.91 9.16 9.29 31.38 23.11 30.40 30.40 5.19 6.19 6.19 6.19 6.19 4.13 48 27 29 21 21 75 77 69 69
3SV-27 31.77 10.79 9.91 9.16 9.29 31.77 23.90 30.79 30.79 5.19 6.19 6.19 6.19 6.19 4.13 50 27 29 21 21 77 79 71 71
3SV-28 0.75 32.56 10.79 9.91 9.16 9.29 32.56 24.68 31.58 31.58 5.19 6.19 6.19 6.19 6.19 4.13 51 27 29 21 21 78 80 72 72
3SV-29 33.74 10.79 9.91 9.16 9.29 33.74 25.47 32.76 32.76 5.19 6.19 6.19 6.19 6.19 4.13 52 27 29 21 21 79 81 73 73
3SV-30 34.53 10.79 9.91 9.16 9.29 34.53 26.26 33.55 33.55 5.19 6.19 6.19 6.19 6.19 4.13 53 27 29 21 21 80 82 74 74
All
dimensions
are in inches
(mm).
3SV SERIES — 60Hz, 1750 RPM ODP/TEFC Enclosures
Dimensions and Weights 3SV Series 1750 RPM 60 Hz

PAGE 51
Commercial Water
Goulds Water Technology
13
25
12
10
9
21
8
7
19
6
5
17
4
3
15
2
30 29
22
14
16
18
11
23
24
26
28 27
20
TOTAL STAGES
3SV 60Hz
1750 RPM
MINIMUM FLOW RATE: 1 GPM [.24 m3/hr]
Performance Curve 3SV 1750 RPM 60 Hz

PAGE 52
Commercial Water
Goulds Water Technology
Motor Dimensions (in) Weight (lbs.)
Pump NEMA Frame L2 D1 (max.) Motor Pump/Motor
Type HP ODP TEFC ODP TEFC L1 ODP TEFC ODP TEFC L3 L4 L5 L6 M ODP TEFC ODP TEFC D2 Pump ODP TEFC ODP TEFC ODP TEFC ODP TEFC
Stages 1Ø 1Ø 3Ø 3Ø 1Ø 1Ø 3Ø 3Ø (Ref.) 1Ø 1Ø 3Ø 3Ø Only 1Ø 1Ø 3Ø 3Ø 1Ø 1Ø 3Ø 3Ø
5SV-02 13.86 9.16 9.29 9.16 9.29 - - 12.88 12.88 5.19 6.19 6.19 6.19 6.19 4.13 25 21 21 19 19 46 46 44 44
5SV-03 13.86 9.16 9.29 9.16 9.29 - - 12.88 12.88 5.19 6.19 6.19 6.19 6.19 4.13 26 21 21 19 19 47 47 45 45
5SV-04 14.85 9.16 9.29 9.16 9.29 - - 13.86 13.86 5.19 6.19 6.19 6.19 6.19 4.13 28 21 21 19 19 49 49 47 47
5SV-05 15.83 9.16 9.29 9.16 9.29 - - 14.85 14.85 5.19 6.19 6.19 6.19 6.19 4.13 29 21 21 19 19 50 50 48 48
5SV-06 16.81 9.16 9.29 9.16 9.29 - - 15.83 15.83 5.19 6.19 6.19 6.19 6.19 4.13 30 21 21 19 19 51 51 49 49
5SV-07 17.80 9.16 9.29 9.16 9.29 17.80 9.53 16.81 16.81 5.19 6.19 6.19 6.19 6.19 4.13 31 21 21 19 19 52 52 50 50
5SV-08 18.78 9.16 9.29 9.16 9.29 18.78 10.51 17.80 17.80 5.19 6.19 6.19 6.19 6.19 4.13 33 21 21 19 19 54 54 52 52
5SV-09 0.5 19.77 9.16 9.29 9.16 9.29 19.77 11.50 18.78 18.78 5.19 6.19 6.19 6.19 6.19 4.13 33 21 21 19 19 54 54 52 52
5SV-10 20.75 9.16 9.29 9.16 9.29 20.75 12.48 19.77 19.77 5.19 6.19 6.19 6.19 6.19 4.13 34 21 21 19 19 55 55 53 53
5SV-11 21.74 9.16 9.29 9.16 9.29 21.74 13.46 20.75 20.75 5.19 6.19 6.19 6.19 6.19 4.13 35 21 21 19 19 56 56 54 54
5SV-12 22.72 9.16 9.29 9.16 9.29 22.72 14.45 21.74 21.74 5.19 6.19 6.19 6.19 6.19 4.13 36 21 21 19 19 57 57 55 55
5SV-13 23.70 9.16 9.29 9.16 9.29 23.70 15.43 22.72 22.72 5.19 6.19 6.19 6.19 6.19 4.13 38 21 21 19 19 59 59 57 57
5SV-14 56C 24.69 9.16 9.29 9.16 9.29 24.69 16.42 23.70 23.70 5.19 6.19 6.19 6.19 6.19 4.13 38 21 21 19 19 59 59 57 57
5SV-15 25.67 9.16 9.29 9.16 9.29 25.67 17.40 24.69 24.69 5.19 6.19 6.19 6.19 6.19 4.13 39 21 21 19 19 60 60 58 58
5SV-16 26.66 9.16 9.29 9.16 9.29 26.66 18.39 25.67 25.67 5.19 6.19 6.19 6.19 6.19 4.13 41 21 21 19 19 62 62 60 60
5SV-17 27.84 10.79 9.91 9.16 9.29 27.84 19.37 26.85 26.85 5.19 6.19 6.19 6.19 6.19 4.13 43 27 29 21 21 70 72 64 64
5SV-18 28.63 10.79 9.91 9.16 9.29 28.63 20.35 27.64 27.64 5.19 6.19 6.19 6.19 6.19 4.13 44 27 29 21 21 71 73 65 65
5SV-19 29.81 10.79 9.91 9.16 9.29 29.81 21.34 28.82 28.82 5.19 6.19 6.19 6.19 6.19 4.13 45 27 29 21 21 72 74 66 66
5SV-20 0.75 30.99 10.79 9.91 9.16 9.29 30.99 22.32 30.00 30.00 5.19 6.19 6.19 6.19 6.19 4.13 46 27 29 21 21 73 75 67 67
5SV-21 31.58 10.79 9.91 9.16 9.29 31.58 23.31 30.59 30.59 5.19 6.19 6.19 6.19 6.19 4.13 47 27 29 21 21 74 76 68 68
5SV-22 32.64 10.79 9.91 9.16 9.29 32.64 24.29 31.66 31.66 5.19 6.19 6.19 6.19 6.19 4.13 48 27 29 21 21 75 77 69 69
5SV-23 33.55 10.79 9.91 9.16 9.29 33.55 25.28 32.56 32.56 5.19 6.19 6.19 6.19 6.19 4.13 49 27 29 21 21 76 78 70 70
5SV-24 34.61 10.79 9.91 9.16 9.29 34.61 26.26 33.63 33.63 5.19 6.19 6.19 6.19 6.19 4.13 51 27 29 21 21 78 80 72 72
5SV-25 35.51 10.66 11.19 9.16 9.29 35.51 27.24 34.53 34.53 5.74 6.19 7.19 6.19 6.19 4.13 51 32 40 23 23 83 91 74 74
5SV-26 1 36.58 10.66 11.19 9.16 9.29 36.58 28.23 35.59 35.59 5.74 6.19 7.19 6.19 6.19 4.13 52 32 40 23 23 84 92 75 75
5SV-27 37.56 10.66 11.19 9.16 9.29 37.56 29.21 36.58 36.58 5.74 6.19 7.19 6.19 6.19 4.13 53 32 40 23 23 85 93 76 76
All
dimensions
are in inches
(mm).
5SV SERIES — 60Hz, 1750 RPM ODP/TEFC Enclosures
Dimensions and Weights 5SV Series 1750 RPM 60 Hz

PAGE 53
Commercial Water
Goulds Water Technology
15
13
12
11
10
9
8
7
6
5
4
3
23
2
17
18
16
21
19
20
14
25
26
24
22
27 TOTAL STAGES 5SV 60Hz
1750 RPM
MINIMUM FLOW RATE: 3 GPM [.7 m3/hr]
Performance Curve 5SV 1750 RPM 60 Hz

PAGE 54
Commercial Water
Goulds Water Technology
Motor Dimensions (in) Weight (lbs.)
Pump NEMA Frame L2 D1 (max.) Motor Pump/Motor
Type HP ODP TEFC ODP TEFC L1 ODP TEFC ODP TEFC L3 L4 L5 L6 M ODP TEFC ODP TEFC D2 Pump ODP TEFC ODP TEFC ODP TEFC ODP TEFC
Stages 1Ø 1Ø 3Ø 3Ø 1Ø 1Ø 3Ø 3Ø (Ref.) 1Ø 1Ø 3Ø 3Ø Only 1Ø 1Ø 3Ø 3Ø 1Ø 1Ø 3Ø 3Ø
10SV-01 16.56 9.16 9.29 9.16 9.29 - - 16.17 16.17 5.19 6.2 6.19 6.19 6.19 4.13 36 21 21 19 19 57 57 55 55
10SV-02 16.56 9.16 9.29 9.16 9.29 - - 16.17 16.17 5.19 6.2 6.19 6.19 6.19 4.13 38 21 21 19 19 59 59 57 57
10SV-03 0.5 17.82 9.16 9.29 9.16 9.29 - - 17.43 17.43 5.19 6.2 6.19 6.19 6.19 4.13 40 21 21 19 19 61 61 59 59
10SV-04 19.08 9.16 9.29 9.16 9.29 - - 18.69 18.69 5.19 6.2 6.19 6.19 6.19 4.13 43 21 21 19 19 64 64 62 62
10SV-05 20.34 9.16 9.29 9.16 9.29 20.34 10.20 19.95 19.95 5.19 6.2 6.19 6.19 6.19 4.13 45 21 21 19 19 66 66 64 64
10SV-06 21.60 10.79 9.91 9.16 9.29 21.60 11.46 21.21 21.21 5.19 6.19 6.19 6.19 6.19 4.13 47 27 29 21 21 74 76 68 68
10SV-07 0.75 22.86 10.79 9.91 9.16 9.29 22.86 12.72 22.47 22.47 5.19 6.19 6.19 6.19 6.19 4.13 49 27 29 21 21 76 78 70 70
10SV-08 24.12 10.79 9.91 9.16 9.29 24.12 13.98 23.72 23.72 5.19 6.19 6.19 6.19 6.19 4.13 51 27 29 21 21 78 80 72 72
10SV-09 1 25.38 10.66 11.19 9.16 9.29 25.38 15.24 24.98 24.98 5.74 6.2 7.19 6.19 6.19 4.13 53 32 40 23 23 85 93 76 76
10SV-10 56C 26.64 10.66 11.19 9.16 9.29 26.64 16.50 26.24 26.24 5.74 6.2 7.19 6.19 6.19 4.13 56 32 40 23 23 88 96 79 79
10SV-11 27.90 10.67 11.19 10.66 9.91 27.90 17.76 27.50 27.50 5.74 6.2 7.19 6.19 6.19 4.72 58 32 40 30 28 90 98 88 86
10SV-12 1.5 28.37 10.67 11.19 10.66 9.91 28.37 19.02 27.98 27.98 5.74 6.2 7.19 6.19 6.19 4.72 60 32 40 30 28 92 100 90 88
10SV-13 30.44 10.67 11.19 10.66 9.91 30.44 20.28 30.04 30.04 5.74 6.2 7.19 6.19 6.19 4.72 65 32 40 30 28 97 105 95 93
10SV-14 31.78 10.67 11.19 10.66 9.91 31.78 21.54 31.38 31.38 5.74 6.2 7.19 6.19 6.19 4.72 67 32 40 30 28 99 107 97 95
10SV-15 32.96 11.18 12.06 11.16 10.79 32.96 22.80 32.56 32.56 5.74 7.19 7.19 6.19 6.19 4.72 69 43 51 32 33 112 120 101 102
10SV-16 34.22 11.18 12.06 11.16 10.79 34.22 24.06 33.82 33.82 5.74 7.19 7.19 6.19 6.19 4.72 71 43 51 32 33 114 122 103 104
10SV-17 2 35.48 11.18 12.06 11.16 10.79 35.48 25.31 35.08 35.08 5.74 7.19 7.19 6.19 6.19 4.72 73 43 51 32 33 116 124 105 106
10SV-18 36.74 11.18 12.06 11.16 10.79 36.74 26.57 36.34 36.34 5.74 7.19 7.19 6.19 6.19 4.72 75 43 51 32 33 118 126 107 108
10SV-19 38.08 11.18 12.06 11.16 10.79 38.08 27.83 37.68 37.68 5.74 7.19 7.19 6.19 6.19 4.72 77 43 51 32 33 120 128 109 110
10SV-20 3 39.26 11.57 13.44 11.18 11.16 39.26 29.09 38.86 38.86 5.75 6.5 7.19 7.16 7.19 5.51 79 49 64 41 44 128 143 120 123
All dimensions are in inches (mm).
10SV SERIES — 60Hz, 1750 RPM ODP/TEFC Enclosures
Dimensions and Weights 10SV Series 1750 RPM 60 Hz

PAGE 55
Commercial Water
Goulds Water Technology
16
15
13
12
14
11
10
9
8
7
6
5
4
3
1
2
17
18
19
20
TOTAL STAGES 10SV 60Hz
1750 RPM
MINIMUM FLOW RATE: 5 GPM [1.4 m3/hr]
Performance Curve 10SV 1750 RPM 60 Hz

PAGE 56
Commercial Water
Goulds Water Technology
Motor Dimensions (in) Weight (lbs.)
Pump NEMA Frame L2 D1 (max.) Motor Pump/Motor
Type HP ODP TEFC ODP TEFC L1 ODP TEFC ODP TEFC L3 L4 L5 L6 M ODP TEFC ODP TEFC D2 Pump ODP TEFC ODP TEFC ODP TEFC ODP TEFC
Stages 1Ø 1Ø 3Ø 3Ø 1Ø 1Ø 3Ø 3Ø (Ref.) 1Ø 1Ø 3Ø 3Ø Only 1Ø 1Ø 3Ø 3Ø 1Ø 1Ø 3Ø 3Ø
15SV-01 0.5 18.61 9.16 9.29 9.16 9.29 - - 18.21 18.21 5.19 6.19 6.19 6.19 6.19 4.13 38 21 21 19 19 59 59 57 57
15SV-02 18.21 9.16 9.29 9.16 9.29 - - 17.82 17.82 5.19 6.19 6.19 6.19 6.19 4.13 41 21 21 19 19 62 62 60 60
15SV-03 0.75 20.10 10.79 9.91 9.16 9.29 - - 19.71 19.71 5.19 6.19 6.19 6.19 6.19 4.13 44 27 29 21 21 71 73 65 65
15SV-04 1 21.99 10.66 11.19 9.16 9.29 21.99 11.85 21.60 21.60 5.74 6.19 7.19 6.19 6.19 4.13 47 32 40 23 23 79 87 70 70
15SV-05 23.88 10.66 11.19 9.16 9.29 23.88 13.74 23.49 23.49 5.74 6.19 7.19 6.19 6.19 4.13 49 32 40 23 23 81 89 72 72
15SV-06 1.5 25.79 10.67 11.19 10.66 9.91 25.79 15.63 25.40 25.40 5.74 6.19 7.19 6.19 6.19 4.72 56 32 40 30 28 88 96 86 84
15SV-07 56C 27.68 10.67 11.19 10.66 9.91 27.68 17.52 27.29 27.29 5.74 6.19 7.19 6.19 6.19 4.72 59 32 40 30 28 91 99 89 87
15SV-08 2 29.57 11.18 12.06 11.16 10.79 29.57 19.41 29.18 29.18 5.74 7.19 7.19 6.19 6.19 4.72 61 43 51 32 33 104 112 93 94
15SV-09 31.46 11.18 12.06 11.16 10.79 31.46 21.30 31.07 31.07 5.74 7.19 7.19 6.19 6.19 4.72 64 43 51 32 33 107 115 96 97
15SV-10 33.35 11.57 13.44 11.18 11.16 33.35 23.19 32.96 32.96 5.75 6.50 7.19 7.16 7.19 5.51 68 49 64 41 44 117 132 109 112
15SV-11 35.24 11.57 13.44 11.18 11.16 35.24 25.08 34.85 34.85 5.75 6.50 7.19 7.16 7.19 5.51 71 49 64 41 44 120 135 112 115
15SV-12 3 37.13 11.57 13.44 11.18 11.16 37.13 26.97 36.74 36.74 5.75 6.50 7.19 7.16 7.19 5.51 74 49 64 41 44 123 138 115 118
15SV-13 39.02 11.57 13.44 11.18 11.16 39.02 28.86 38.63 38.63 5.75 6.50 7.19 7.16 7.19 5.51 77 49 64 41 44 126 141 118 121
15SV-14 40.91 11.57 13.44 11.18 11.16 40.91 30.75 40.52 40.52 5.75 6.50 7.19 7.16 7.19 5.51 80 49 64 41 44 129 144 121 124
15SV-15 5 184TC 182TC 184TC 43.30 13.93 15.43 12.55 13.93 43.30 32.64 42.91 42.91 6.87 8.88 8.86 9.02 8.86 5.51 86 81 92 62 69 167 178 148 155
All dimensions are in inches (mm).
15SV SERIES — 60Hz, 1750 RPM ODP/TEFC Enclosures
Dimensions and Weights 15SV Series 1750 RPM 60 Hz

PAGE 57
Commercial Water
Goulds Water Technology
15
14
13
12
11
10
9
8
7
6
5
4
3
1
2
TOTAL STAGES
15SV 60Hz
1750 RPM
MINIMUM FLOW RATE: 8 GPM [2 m3/hr]
Performance Curve 15SV 1750 RPM 60 Hz

PAGE 58
Commercial Water
Goulds Water Technology
Motor Dimensions (in) Weight (lbs.)
Pump NEMA Frame L2 D1 (max.) Motor Pump/Motor
Type HP ODP TEFC ODP TEFC L1 ODP TEFC ODP TEFC L3 L4 L5 L6 M ODP TEFC ODP TEFC D2 Pump ODP TEFC ODP TEFC ODP TEFC ODP TEFC
Stages 1Ø 1Ø 3Ø 3Ø 1Ø 1Ø 3Ø 3Ø (Ref.) 1Ø 1Ø 3Ø 3Ø Only 1Ø 1Ø 3Ø 3Ø 1Ø 1Ø 3Ø 3Ø
22SV-01 0.5 18.61 9.16 9.29 9.16 9.29 - - 18.21 18.21 5.19 6.19 6.19 6.19 6.19 4.13 39 21 21 19 19 60 60 58 58
22SV-02 18.21 9.16 9.29 9.16 9.29 - - 17.82 17.82 5.19 6.19 6.19 6.19 6.19 4.13 42 21 21 19 19 63 63 61 61
22SV-03 0.75 20.10 10.79 9.91 9.16 9.29 - - 19.71 19.71 5.19 6.19 6.19 6.19 6.19 4.13 45 27 29 21 21 72 74 66 66
22SV-04 1.5 21.99 10.67 11.19 10.66 9.91 21.99 11.85 21.60 21.60 5.74 6.19 7.19 6.19 6.19 4.72 48 32 40 30 28 80 88 78 76
22SV-05 23.90 10.67 11.19 10.66 9.91 23.90 13.74 23.51 23.51 5.74 6.19 7.19 6.19 6.19 4.72 51 32 40 30 28 83 91 81 79
22SV-06 2 56C 25.79 11.18 12.06 11.16 10.79 25.79 15.63 25.40 25.40 5.74 7.19 7.19 6.19 6.19 4.72 54 43 51 32 33 97 105 86 87
22SV-07 27.68 11.18 12.06 11.16 10.79 27.68 17.52 27.29 27.29 5.74 7.19 7.19 6.19 6.19 4.72 57 43 51 32 33 100 108 89 90
22SV-08 29.57 11.57 13.44 11.18 11.16 29.57 19.41 29.18 29.18 5.75 6.50 7.19 7.16 7.19 5.51 60 49 64 41 44 109 124 101 104
22SV-09 3 31.46 11.57 13.44 11.18 11.16 31.46 21.30 31.07 31.07 5.75 6.50 7.19 7.16 7.19 5.51 62 49 64 41 44 111 126 103 106
22SV-10 33.35 11.57 13.44 11.18 11.16 33.35 23.19 32.96 32.96 5.75 6.50 7.19 7.16 7.19 5.51 66 49 64 41 44 115 130 107 110
22SV-11 35.24 11.57 13.44 11.18 11.16 35.24 25.08 34.85 34.85 5.75 6.50 7.19 7.16 7.19 5.51 69 49 64 41 44 118 133 110 113
22SV-12 5 184TC 182TC 184TC 37.63 13.93 15.43 12.55 13.93 37.63 26.97 37.24 37.24 6.87 8.88 8.86 9.02 8.86 5.51 75 81 92 62 69 156 167 137 144
All dimensions are in inches (mm).
22SV SERIES — 60Hz, 1750 RPM ODP/TEFC Enclosures
Dimensions and Weights 22SV Series 1750 RPM 60 Hz

PAGE 59
Commercial Water
Goulds Water Technology
12
11
10
9
8
7
6
5
4
3
1
2
TOTAL STAGES
22SV 60Hz
1750 RPM
MINIMUM FLOW RATE: 11 GPM [2.5 m3/hr]
Performance Curve 22SV 1750 RPM 60 Hz

PAGE 60
Commercial Water
Goulds Water Technology
Motor Dimensions (in) Weight (lbs.)
Pump NEMA Frame L2 D1 (max.) Motor Pump/Motor
Type HP ODP TEFC ODP TEFC L1 ODP TEFC ODP TEFC M ODP TEFC ODP TEFC D2 Pump ODP TEFC ODP TEFC ODP TEFC ODP TEFC
Stages 1Ø 1Ø 3Ø 3Ø 1Ø 1Ø 3Ø 3Ø (Ref.) 1Ø 1Ø 3Ø 3Ø Only 1Ø 1Ø 3Ø 3Ø 1Ø 1Ø 3Ø 3Ø
33SV-1 1 - - 20.62 - - 132
33SV-2/2 - - 23.58 - - 143
33SV-2/1 1.5 - - 23.58 - - 143
33SV-2 - - 23.58 - - 143
33SV-3/2 - - 26.54 - - 151
33SV-3/1 2 - - 26.54 - - 151
33SV-3 - - 26.54 - - 151
33SV-4/2 - - 29.50 - - 13.94 15.44 6.88 - - 8.50 8.50 5.51 161 49 64 41 44 210 225 202 205
33SV-4/1 - - 29.50 - - 13.94 15.44 6.88 - - 8.50 8.50 5.51 161 49 64 41 44 210 225 202 205
33SV-4 3 - - 182TC 29.50 - - 13.94 15.44 6.88 - - 8.50 8.50 5.51 161 49 64 41 44 210 225 202 205
33SV-5/2 - - 31.44 - - 13.94 15.44 6.88 - - 8.50 8.50 5.51 172 49 64 41 44 221 236 213 216
33SV-5/1 - - 31.44 - - 13.94 15.44 6.88 - - 8.50 8.50 5.51 172 49 64 41 44 221 236 213 216
33SV-5 - - 31.44 - - 13.94 15.44 6.88 - - 8.50 8.50 5.51 172 81 92 62 69 253 264 234 241
33SV-6/2 - - 34.40 - - 13.94 15.44 6.88 - - 8.50 8.50 5.51 194 81 92 62 69 275 286 256 263
33SV-6/1 - - 34.40 - - 13.94 15.44 6.88 - - 8.50 8.50 5.51 194 81 92 62 69 275 286 256 263
33SV-6 - - 34.40 - - 13.94 15.44 6.88 - - 8.50 8.50 5.51 194 81 92 62 69 275 286 256 263
33SV-7/2 5 - - 184TC 37.35 - - 13.94 15.44 6.88 - - 8.50 8.50 5.51 204 81 92 62 69 285 296 266 273
33SV-7/1 - - 37.35 - - 13.94 15.44 6.88 - - 8.50 8.50 5.51 204 81 92 62 69 285 296 266 273
33SV-7 - - 37.35 - - 13.94 15.44 6.88 - - 8.50 8.50 5.51 204 81 92 62 69 285 296 266 273
33SV-8/2 - - 41.30 - - 13.94 15.44 6.88 - - 8.50 8.50 5.51 221 81 92 62 69 302 313 283 290
33SV-8/1 - - 41.30 - - 13.94 15.44 6.88 - - 8.50 8.50 5.51 221 81 92 62 69 302 313 283 290
33SV-8 - - 41.30 - - 13.94 15.44 6.88 - - 8.50 8.50 5.51 221 81 92 62 69 302 313 283 290
33SV-9/2 - - 43.25 - - 15.56 15.50 8.06 - - 10.19 10.25 5.51 230 100 120 75 85 330 350 305 315
33SV-9/1 - - 43.25 - - 15.56 15.50 8.06 - - 10.19 10.25 5.51 230 100 120 75 85 330 350 305 315
33SV-9 7.5 - - 213TC 43.25 - - 15.56 15.50 8.06 - - 10.19 10.25 5.51 230 100 120 75 85 330 350 305 315
33SV-10/2 - - 46.20 - - 15.56 15.50 8.06 - - 10.19 10.25 5.51 249 100 120 75 85 349 369 324 334
33SV-10/1 - - 46.20 - - 15.56 15.50 8.06 - - 10.19 10.25 5.51 249 100 120 75 85 349 369 324 334
33SV-10 - - 46.20 - - 15.56 15.50 8.06 - - 10.19 10.25 5.51 249 100 120 75 85 349 369 324 334
CONTACT FACTORY CONTACT FACTORY CONTACT FACTORY
CONTACT
FACTORY
6.69
(170)
8.66
(220)
Ø .6 (15)
4 HOLES
4.13
(105)
12.60
(320)
DRAIN 1/2 BSP
3/8
NPT
3/8
NPT
1.18
(30)
L1
L2
Ø P
REF
M
REF
FILL
1/2 BSP
VENT
1/2 BSP Ø 5.88 B.C.
(149.3)
Ø .88 (22)
8 HOLES
Ø 5.88 B.C.
(149.3) Ø .88 (22)
8 HOLES
4.94
(125.5)
7.50 (190.5)
4.11
(104.5)
7.50 (190.5)
Ø 5.50 B.C.
(139.7)
Ø .75 (19)
4 HOLES
Ø 5.50 B.C.
(139.7) Ø .75 (19)
4 HOLES
7.50
(190.5)
4.11
(104.5)
7.50 (190.5)
11.42
(290)
9.45
(240)
Cast Iron
2½" Class 125 F.F. 316SS
2½" Class 150 R.F.
Cast Iron
2½" Class 250 R.F.
316SS
2½" Class 300 R.F.
All dimensions are in inches (mm).
33SV SERIES — 60Hz, 1750 RPM ODP/TEFC Enclosures
Dimensions and Weights 33SV Series 1750 RPM 60 Hz

PAGE 61
Commercial Water
Goulds Water Technology
0
100
200
300
02550 125
Q [US GPM]
TOTAL DYNAMIC HEAD [FEET]
50
60
80
EFF %
0
.25
.5
.75
1
HP/STAGE
025
Q [m
3
/h]
0
30
40
50
60
70
80
90
0
6
10
NPSHr [FEET]
75 100
2015105
70
8
4
0
2
3
1
2
20
10
NPSHr [METERS]
TOTAL DYNAMIC HEAD [METERS]
TOTAL STAGES/REDUCED STAGES
10
10/1
10/2
9
9/1
9/2
8
8/1
8/2
7
7/1
7/2
6
6/1
6/2
5
5/1
5/2
4
4/1
4/2
3
2
1
Reduced Dia. Efficiency [%]
Full Dia.
33SV 60 Hz
1750 RPM
MINIMUM FLOW RATE: 18 GPM [4 m3/hr]
Performance Curve 33SV 1750 RPM 60 Hz

PAGE 62
Commercial Water
Goulds Water Technology
Motor Dimensions (in) Weight (lbs.)
Pump NEMA Frame L2 D1 (max.) Motor Pump/Motor
Type HP ODP TEFC ODP TEFC L1 ODP TEFC ODP TEFC M ODP TEFC ODP TEFC D2 Pump ODP TEFC ODP TEFC ODP TEFC ODP TEFC
Stages 1Ø 1Ø 3Ø 3Ø 1Ø 1Ø 3Ø 3Ø (Ref.) 1Ø 1Ø 3Ø 3Ø Only 1Ø 1Ø 3Ø 3Ø 1Ø 1Ø 3Ø 3Ø
46SV-1 1.5 - - 22.19 - - 147
46SV-2/2 - - 25.19 - - 158
46SV-2/1 2 - - 25.19 - - 158
46SV-2 - - 25.19 - - 158
46SV-3/2 - - 27.12 - - 13.94 15.44 6.88 - - 8.50 8.50 5.51 169 - - 61 62 - - 230 231
46SV-3/1 3 - - 182TC 27.12 - - 13.94 15.44 6.88 - - 8.50 8.50 5.51 169 - - 61 62 - - 230 231
46SV-3 - - 27.12 - - 13.94 15.44 6.88 - - 8.50 8.50 5.51 169 - - 61 62 - - 230 231
46SV-4/2 - - 31.63 - - 13.94 15.44 6.88 - - 8.50 8.50 5.51 192 - - 68 75 - - 260 267
46SV-4/1 - - 31.63 - - 13.94 15.44 6.88 - - 8.50 8.50 5.51 192 - - 68 75 - - 260 267
46SV-4 - - 31.63 - - 13.94 15.44 6.88 - - 8.50 8.50 5.51 192 - - 68 75 - - 260 267
46SV-5/2 5 - - 184TC 35.56 - - 13.94 15.44 6.88 - - 8.50 8.50 5.51 199 - - 68 75 - - 267 274
46SV-5/1 - - 35.56 - - 13.94 15.44 6.88 - - 8.50 8.50 5.51 199 - - 68 75 - - 267 274
46SV-5 - - 35.56 - - 13.94 15.44 6.88 - - 8.50 8.50 5.51 199 - - 68 75 - - 267 274
46SV-6/2 - - 37.50 - - 15.56 15.50 8.06 - - 10.19 10.25 5.51 208 - - 68 75 - - 276 283
46SV-6/1 - - 37.50 - - 15.56 15.50 8.06 - - 10.19 10.25 5.51 208 - - 122 125 - - 330 333
46SV-6 - - 37.50 - - 15.56 15.50 8.06 - - 10.19 10.25 5.51 208 - - 122 125 - - 330 333
46SV-7/2 - - 39.94 - - 15.56 15.50 8.06 - - 10.19 10.25 5.51 233 - - 122 125 - - 355 358
46SV-7/1 7.5 - - 213TC 39.94 - - 15.56 15.50 8.06 - - 10.19 10.25 5.51 233 - - 122 125 - - 355 358
46SV-7 - - 39.94 - - 15.56 15.50 8.06 - - 10.19 10.25 5.51 233 - - 122 125 - - 355 358
46SV-8/2 - - 42.94 - - 15.56 15.50 8.06 - - 10.19 10.25 5.51 242 - - 122 125 - - 364 367
46SV-8/1 - - 42.94 - - 15.56 15.50 8.06 - - 10.19 10.25 5.51 242 - - 122 125 - - 364 367
46SV-8 - - 42.94 - - 15.56 15.50 8.06 - - 10.19 10.25 5.51 242 - - 122 125 - - 364 367
46SV-9/2 - - 45.88 - - 15.56 15.50 8.06 - - 10.19 10.25 5.51 253 - - 125 129 - - 378 382
46SV-9/1 10 - - 215TC 45.88 - - 15.56 15.50 8.06 - - 10.19 10.25 5.51 253 - - 125 129 - - 378 382
46SV-9 - - 45.88 - - 15.56 15.50 8.06 - - 10.19 10.25 5.51 253 - - 125 129 - - 378 382
46SV-10/2 - - 48.12 - - 15.56 15.50 8.06 - - 10.19 10.25 5.51 164 - - 125 129 - - 289 293
CONTACT FACTORY CONTACT FACTORY CONTACT FACTORY
CONTACT
FACTORY
7.48
(190)
9.45
(240)
Ø .6 (15)
4 HOLES
5.5
(140)
14.4
(365)
DRAIN 1/2 BSP
3/8
NPT
3/8
NPT
1.77
(45)
L1
L2
D1
M
REF
FILL
1/2
BSP
VENT
1/2 BSP Ø 6.62 B.C.
(168.2)
Ø .88 (22)
8 HOLES
Ø 6.62 B.C.
(168.2) Ø .88 (22)
8 HOLES
5.69
(144.5)
8.25 (209.5)
5.00 (127)
8.25 (209.5)
Ø 6.00 B.C.
(152.4)
Ø .75 (19)
4 HOLES
Ø 6.00 B.C.
(152.4) Ø .75 (19)
4 HOLES
8.25
(209.5)
Cast Iron
3" Class 125 F.F.
12.40
(315)
10.43
(265)
8.25 (209.5)
5.00 (127)
316SS
3" Class 150 R.F.
Cast Iron
3" Class 250 R.F.
316SS
3" Class 300 R.F.
All dimensions are in inches (mm).
46SV SERIES — 60Hz, 1750 RPM ODP/TEFC Enclosures
Dimensions and Weights 46SV Series 1750 RPM 60 Hz

PAGE 63
Commercial Water
Goulds Water Technology
0
50
100
150
200
250
080 180
TOTAL DYNAMIC HEAD [FEET]
40
60
80
EFF %
0
1
1.5
HP/STAGE
0
0
10
100
300
350
1
160140120100
201510
70
.5
353025
5
NPSHr [FEET]
1
3
2
604020
50
4
3
2
20
30
40
50
60
70
80
90
5
Q [US GPM]
NPSHr [METERS]
TOTAL DYNAMIC HEAD [METERS]
Q [m
3
/h]
TOTAL STAGES/REDUCED STAGES
10/2
9
9/1
9/2
8
8/1
8/2
7
7/1
7/2
6
6/1
6/2
5
5/1
5/2
4
4/1
4/2
3
3/1
3/2
2
1
10/1
10
Reduced Dia.
Efficiency [%]
Full Dia.
46SV 60 Hz
1750 RPM
MINIMUM FLOW RATE: 20 GPM [5 m3/hr]
Performance Curve 46SV 1750 RPM 60 Hz

PAGE 64
Commercial Water
Goulds Water Technology
7.48
(190)
9.45
(240)
Ø .6 (15)
4 HOLES
5.5
(140)
14.4
(365)
DRAIN 1/2 BSP
3/8
NPT
3/8
NPT
1.77
(45)
L1
L2
D1
M
REF
FILL
1/2
BSP
VENT
1/2 BSP
Ø 7.88 B.C.
(200.1)
Ø .88 (22)
8 HOLES
Ø 7.88 B.C.
(200.1)
Ø .88 (22)
8 HOLES
6.94
(176.3)
10.00 (254)
6.18 (157)
10.00 (254)
Ø 7.50 B.C.
(190.5)
Ø .75 (19)
8 HOLES
Ø 7.50 B.C.
(190.5)
Ø 0.75 (19)
8 HOLES
10.00
(254)
Cast Iron
4" Class 250 R.F.
12.40
(315)
10.43
(265)
10.00 (254)
6.18 (157)
316SS
4" Class 300 R.F.
Cast Iron
4" Class 125 F.F.
316SS
4" Class 150 R.F.
All dimensions are in inches (mm).
Motor Dimensions (in) Weight (lbs.)
Pump NEMA Frame L2 D1 (max.) Motor Pump/Motor
Type HP ODP TEFC ODP TEFC L1 ODP TEFC ODP TEFC M ODP TEFC ODP TEFC D2 Pump ODP TEFC ODP TEFC ODP TEFC ODP TEFC
Stages 1Ø 1Ø 3Ø 3Ø 1Ø 1Ø 3Ø 3Ø (Ref.) 1Ø 1Ø 3Ø 3Ø Only 1Ø 1Ø 3Ø 3Ø 1Ø 1Ø 3Ø 3Ø
66SV-1 23.19 185
66SV-2/2 - - 26.75 - - 13.94 15.44 6.88 - - 8.50 8.50 5.51 196 - - 61 62 - - 257 258
66SV-2/1 3 - - 182TC 26.75 - - 13.94 15.44 6.88 - - 8.50 8.50 5.51 196 - - 61 62 - - 257 258
66SV-2 - - 26.75 - - 13.94 15.44 6.88 - - 8.50 8.50 5.51 196 - - 61 62 - - 257 258
66SV-3/2 - - 30.81 - - 13.94 15.44 6.88 - - 8.50 8.50 5.51 223 - - 68 75 - - 291 298
66SV-3/1 - - 30.81 - - 13.94 15.44 6.88 - - 8.50 8.50 5.51 223 - - 68 75 - - 291 298
66SV-3 5 - - 184TC 30.81 - - 13.94 15.44 6.88 - - 8.50 8.50 5.51 223 - - 68 75 - - 291 298
66SV-4/2 - - 34.38 - - 13.94 15.44 6.88 - - 8.50 8.50 5.51 234 - - 68 75 - - 302 309
66SV-4/1 - - 34.38 - - 13.94 15.44 6.88 - - 8.50 8.50 5.51 234 - - 68 75 - - 302 309
66SV-4 - - 34.38 - - 15.56 15.50 8.06 - - 10.19 10.25 5.51 234 - - 122 125 - - 356 359
66SV-5/2 - - 37.44 - - 15.56 15.50 8.06 - - 10.19 10.25 5.51 252 - - 122 125 - - 374 377
66SV-5/1 7.5 - - 213TC 37.44 - - 15.56 15.50 8.06 - - 10.19 10.25 5.51 252 - - 122 125 - - 374 377
66SV-5 - - 37.44 - - 15.56 15.50 8.06 - - 10.19 10.25 5.51 252 - - 122 125 - - 374 377
66SV-6/2 - - 40.94 - - 15.56 15.50 8.06 - - 10.19 10.25 5.51 266 - - 122 125 - - 388 391
66SV-6/1 10 - - 215TC 40.94 - - 15.56 15.50 8.06 - - 10.19 10.25 5.51 266 - - 125 129 - - 391 395
66SV-6 - - 40.94 - - 15.56 15.50 8.06 - - 10.19 10.25 5.51 266 - - 125 129 - - 391 395
CONTACT FACTORY CONTACT FACTORY CONTACT FACTORY CONTACT FACTORY
66SV SERIES — 60Hz, 1750 RPM ODP/TEFC Enclosures
Dimensions and Weights 66SV Series 1750 RPM 60 Hz

PAGE 65
Commercial Water
Goulds Water Technology
0
100
150
200
0 250
TOTAL DYNAMIC HEAD [FEET]
50
60
80
EFF %
0
3
HP/STAGE
05
0
0
30
40
50
60
70
250
0
NPSHr [FEET]
200100
2010
70
4030
15050
2
1
8
12
10
6
0
1
3
2
50
20
10
4
2
NPSHr [METERS]
Q [US GPM]
TOTAL DYNAMIC HEAD [METERS]
Q [m
3
/h]
6
6/1
6/2
5
5/1
5/2
4
4/1
4/2
3
3/1
3/2
2
2/1
2/2
1
TOTAL STAGES/REDUCED STAGES
Reduced Dia.
Efficiency [%]
Full Dia.
66SV 60 Hz
1750 RPM
MINIMUM FLOW RATE: 35 GPM [8 m3/hr]
Performance Curve 66SV 1750 RPM 60 Hz

PAGE 66
Commercial Water
Goulds Water Technology
Motor Dimensions (in) Weight (lbs.)
Pump NEMA Frame L2 D1 (max.) Motor Pump/Motor
Type HP ODP TEFC ODP TEFC L1 ODP TEFC ODP TEFC M ODP TEFC ODP TEFC D2 Pump ODP TEFC ODP TEFC ODP TEFC ODP TEFC
Stages 1Ø 1Ø 3Ø 3Ø 1Ø 1Ø 3Ø 3Ø (Ref.) 1Ø 1Ø 3Ø 3Ø Only 1Ø 1Ø 3Ø 3Ø 1Ø 1Ø 3Ø 3Ø
92SV-1 3 - - 182TC 23.19 - - 15.56 16.56 9.25 - - 10.19 10.31 5.51 185 - - 61 62 - - 246 247
92SV-2/2 - - 26.75 - - 15.56 16.56 9.25 - - 10.19 10.31 5.51 196 - - 61 62 - - 257 258
92SV-2/1 - - 26.75 - - 15.56 16.56 9.25 - - 10.19 10.31 5.51 196 - - 61 62 - - 257 258
92SV-2 - - 26.75 - - 15.56 16.56 9.25 - - 10.19 10.31 5.51 196 - - 68 75 - - 264 271
92SV-3/2 5 - - 184TC 30.81 - - 15.56 16.56 9.25 - - 10.19 10.31 5.51 223 - - 68 75 - - 291 298
92SV-3/1 - - 30.81 - - 15.56 16.56 9.25 - - 10.19 10.31 5.51 223 - - 68 75 - - 291 298
92SV-3 - - 30.81 - - 15.56 16.56 9.25 - - 10.19 10.31 5.51 223 - - 68 75 - - 291 298
92SV-4/2 - - 34.38 - - 15.56 15.50 8.06 - - 10.19 10.25 5.51 234 - - 122 125 - - 356 359
92SV-4/1 7.5 - - 213TC 34.38 - - 15.56 15.50 8.06 - - 10.19 10.25 5.51 234 - - 122 125 - - 356 359
92SV-4 - - 34.38 - - 15.56 15.50 8.06 - - 10.19 10.25 5.51 234 - - 122 125 - - 356 359
92SV-5/2 - - 37.44 - - 15.56 15.50 8.06 - - 10.19 10.25 5.51 252 - - 122 125 - - 374 377
92SV-5/1 - - 37.44 - - 15.56 15.50 8.06 - - 10.19 10.25 5.51 252 - - 125 129 - - 377 381
92SV-5 - - 37.44 - - 15.56 15.50 8.06 - - 10.19 10.25 5.51 252 - - 125 129 - - 377 381
92SV-6/2 10 - - 215TC 40.94 - - 15.56 15.50 8.06 - - 10.19 10.25 5.51 266 - - 125 129 - - 391 395
92SV-6/1 - - 40.94 - - 15.56 15.50 8.06 - - 10.19 10.25 5.51 266 - - 125 129 - - 391 395
92SV-6 - - 40.94 - - 15.56 15.50 8.06 - - 10.19 10.25 5.51 266 - - 125 129 - - 391 395
7.48
(190)
9.45
(240)
Ø .6 (15)
4 HOLES
5.5
(140)
14.4
(365)
DRAIN 1/2 BSP
3/8
NPT
3/8
NPT
1.77
(45)
L1
L2
D1
M
REF
FILL
1/2
BSP
VENT
1/2 BSP
Ø 7.88 B.C.
(200.1)
Ø .88 (22)
8 HOLES
Ø 7.88 B.C.
(200.1)
Ø .88 (22)
8 HOLES
6.94
(176.3)
10.00 (254)
6.18 (157)
10.00 (254)
Ø 7.50 B.C.
(190.5)
Ø .75 (19)
8 HOLES
Ø 7.50 B.C.
(190.5)
Ø 0.75 (19)
8 HOLES
10.00
(254)
Cast Iron
4" Class 250 R.F.
12.40
(315)
10.43
(265)
10.00 (254)
6.18 (157)
316SS
4" Class 300 R.F.
Cast Iron
4" Class 125 F.F.
316SS
4" Class 150 R.F.
All dimensions are in inches (mm).
92SV SERIES — 60Hz, 1750 RPM ODP/TEFC Enclosures
Dimensions and Weights 92SV Series 1750 RPM 60 Hz

PAGE 67
Commercial Water
Goulds Water Technology
0
50
100
150
200
250
0 400
TOTAL DYNAMIC HEAD [FEET]
50
60
80
EFF %
0
3
HP/STAGE
08
0
0
30
60
70
0
20
NPSHr [FEET]
300200100
4010
70
1
7060
10
0
6
1
2
3
4
40
50
20
10
5
2
30 5020
NPSHr [METERS]
Q [US GPM]
TOTAL DYNAMIC HEAD [METERS]
Q [m
3
/h]
TOTAL STAGES/REDUCED STAGES
5/1
5/2
4
4/1
4/2
3
3/1
3/2
2
2/1
2/2
1
1/1
6
6/1
6/2
5
Reduced Dia.
Efficiency [%]
Full Dia.
92SV 60 Hz
1750 RPM
MINIMUM FLOW RATE: 50 GPM [11 m3/hr]
Performance Curve 92SV 1750 RPM 60 Hz

PAGE 68
Commercial Water
Goulds Water Technology
Motor Dimensions (in) Weight (lbs.)
NEMA Frame L2 D1 (max.) Motor Pump/Motor
Pump HP ODP TEFC ODP TEFC L1 ODP TEFC ODP TEFC L3 L4 L5 L6 M ODP TEFC ODP TEFC D2 Pump ODP TEFC ODP TEFC ODP TEFC ODP TEFC
Type 1Ø 1Ø 3Ø 3Ø 1Ø 1Ø 3Ø 3Ø (Ref.) 1Ø 1Ø 3Ø 3Ø 1Ø 1Ø 3Ø 3Ø 1Ø 1Ø 3Ø 3Ø
125SV-2/0C 5 184TC 184TC 182TC 184TC 34.60 13.93 15.43 12.55 13.93 - - - - 6.87 8.88 8.86 9.02 8.86 5.51 289 81 92 62 69 370 381 351 358
125SV-3/3A 5 184TC 184TC 182TC 184TC 40.50 13.93 15.43 12.55 13.93 - - - - 6.87 8.88 8.86 9.02 8.86 5.51 315 81 92 62 69 396 407 377 384
125SV-4/0C 7.5 213TC 213TC 184TC 184TC 46.40 13.88 15.53 13.93 15.43 - - - - 8.05 8.89 10.62 8.88 8.86 5.51 355 100 120 75 85 455 475 430 440
125SV-5/5A 10 215TC 215TC 213TC 215TC 52.30 16.63 16.68 15.55 15.51 - - - - 8.77 10.62 10.18 10.18 10.28 5.51 379 132 145 107 122 511 524 486 501
125SV-6/6A 10 215TC 215TC 213TC 215TC 58.20 16.63 16.68 15.55 15.51 - - - - 8.77 10.62 10.18 10.18 10.28 5.51 412 132 145 107 122 544 557 519 534
125SV-7/0C 15 - - 215TC 254TC 65.30 - - 15.55 16.57 - - - - 9.22 - - 10.18 10.28 5.51 476 - - 125 195 - - 601 671
125SV-8/0C 15 - - 215TC 254TC 71.10 - - 15.55 16.57 - - - - 9.22 - - 10.18 10.28 5.51 494 - - 125 195 - - 619 689
125SV SERIES — 60Hz, 1750 RPM ODP/TEFC Enclosures
Dimensions and Weights 125SV Series 1750 RPM 60 Hz
All dimensions are in inches (mm).
10.87
(275)
13.00
(330)
Ø .75 (19)
4 HOLES
6.30
(160)
18.90 (480)
DRAIN 1/2 BSP
3/8
NPT
3/8
NPT
1.77
(45)
L1
L2
D1
M
REF
FILL
1/2
BSP
VENT
1/2 BSP
Ø .88 (22)
8 HOLES
9.25 B.C.
(235)
9.25 B.C.
(235)
Ø .88 (22)
8 HOLES
8.31(211)
11.00 (280)
7.00 (178)
11.00 (280)
8.50 B.C.
(216)
Ø 0.88 (22)
8 HOLES
8.50 B.C.
(216)
Ø 0.88 (22)
8 HOLES
10.00
(254)
Cast Iron
5" Class 250 R.F.
17.72
(450)
14.96
(380)
10.00 (254)
6.44 (164)
316SS
5" Class 300 R.F.
Cast Iron
5" Class 125 F.F.
316SS
5" Class 150 R.F.

PAGE 69
Commercial Water
Goulds Water Technology
5/5A
4/0C
3/3A
2/0C
6/6A
7/0C
8/0C
125SV 60Hz
1750 RPM
MINIMUM FLOW RATE: 50 GPM [10 m3/hr]
Performance Curve 125SV 1750 RPM 60 Hz

PAGE 70
Commercial Water
Goulds Water Technology
1SV – 22SV Horizontal Mounting Option
• Consists of e-SV pump with base mounting foot and footed motor for horizontal installations.
• Unit depicted may not show actual pump conguration. Use for mounting location only.

PAGE 71
Commercial Water
Goulds Water Technology
Series Motor Flange A B C D E F G H Motor Shim Pump Shim
Frame
Thickness Thickness
T 4.5 7 9 0.219 0.810 3 6.563 4.825 1 -
1SV 56C F, N, P, G, C 4.5 7 9 1.125 0.810 3 6.563 4.825 1 -
R 4.5 11 12 1.254 0.940 3 6.563 4.825 1 -
T 4.5 7 9 0.219 0.81 3 6.563 4.825 1 -
56C F, N, P, G, C 4.5 7 9 1.125 0.81 3 6.563 4.825 1 -
R 4.5 11 12 1.254 0.94 3 6.563 4.825 1 -
T 4.5 7 9 0.219 1.88 5.5 6.563 4.825 - -
3SV 180TC F, N, P, G, C 4.5 7 9 1.125 1.88 5.5 6.563 4.825 - -
R 4.5 11 12 1.254 2.01 5.5 6.563 4.825 - -
T 4.5 7 9 0.219 2.5 7 6.563 4.825 - 0.75
210TC F, N, P, G, C 4.5 7 9 1.125 2.5 7 6.563 4.825 - 0.75
R 4.5 11 12 1.254 2.63 7 6.563 4.825 - 0.75
T 4.5 7 9 0.219 0.81 3 6.563 4.825 1 -
56C F, N, P, G, C 4.5 7 9 1.125 0.81 3 6.563 4.825 1 -
R 4.5 11 12 1.254 0.94 3 6.563 4.825 1 -
T 4.5 7 9 0.219 1.88 5.5 6.563 4.825 - -
5SV 180TC F, N, P, G, C 4.5 7 9 1.125 1.88 5.5 6.563 4.825 - -
R 4.5 11 12 1.254 2.01 5.5 6.563 4.825 - -
T 4.5 7 9 0.219 2.5 7 6.563 4.825 - 0.75
210TC F, N, P, G, C 4.5 7 9 1.125 2.5 7 6.563 4.825 - 0.75
R 4.5 11 12 1.254 2.63 7 6.563 4.825 - 0.75
T 6.25 9.125 10.50 1.59 1 3 6.563 4.825 2.75 -
56C F, N, P, G, C 6.25 9.125 10.50 1.983 1 3 6.563 4.825 2.75 -
R 6.25 11.875 13.25 1.983 1 3 6.563 4.825 1 -
T 6.25 9.125 10.50 1.59 2.07 5.5 8.625 7.50 1.75 -
180TC F, N, P, G, C 6.25 9.125 10.50 1.983 2.07 5.5 8.625 7.50 1.75 -
10SV R 6.25 11.875 13.25 1.983 2.07 5.5 8.625 7.50 - -
T 6.25 9.125 10.50 1.59 2.69 7 9.500 8.50 1 -
210TC F, N, P, G, C 6.25 9.125 10.50 1.983 2.69 7 9.500 8.50 1 -
R 6.25 11.875 13.25 1.983 2.69 7 9.500 8.50 - 0.75
T 6.25 9.125 10.50 1.59 3.19 10 11.500 10.00 - -
250TC F, N, P, G, C 6.25 9.125 10.50 1.983 3.19 10 11.500 10.00 - -
R 6.25 11.875 13.25 1.983 3.19 10 11.500 10.00 - 1.75
T 6.25 9.125 10.50 1.59 1 3 6.563 4.825 2.75 -
56C F, N, P, G, C 6.25 9.125 10.50 1.983 1 3 6.563 4.825 2.75 -
R 6.25 11.875 13.25 1.983 1 3 6.563 4.825 1 -
T 6.25 9.125 10.50 1.59 2.07 5.5 8.625 7.50 1.75 -
180TC F, N, P, G, C 6.25 9.125 10.50 1.983 2.07 5.5 8.625 7.50 1.75 -
R 6.25 11.875 13.25 1.983 2.07 5.5 8.625 7.50 - -
T 6.25 9.125 10.50 1.59 2.69 7 9.500 8.50 1 -
15SV 210TC F, N, P, G, C 6.25 9.125 10.50 1.983 2.69 7 9.500 8.50 1 -
R 6.25 11.875 13.25 1.983 2.69 7 9.500 8.50 - 0.75
T 6.25 9.125 10.50 1.59 3.19 10 11.500 10.00 - -
250TC F, N, P, G, C 6.25 9.125 10.50 1.983 3.19 10 11.500 10.00 - -
R 6.25 11.875 13.25 1.983 3.19 10 11.500 10.00 - 1.75
T 6.25 9.125 10.50 1.59 3.19 11 12.750 12.50 - 0.75
280TC F, N, P, G, C 6.25 9.125 10.50 1.983 3.19 11 12.750 12.50 - 0.75
R 6.25 11.875 13.25 1.983 3.19 11 12.750 12.50 - 2.50
T 6.25 9.125 10.50 1.59 1 3 6.563 4.825 2.75 -
56C F, N, P, G, C 6.25 9.125 10.50 1.983 1 3 6.563 4.825 2.75 -
R 6.25 11.875 13.25 1.983 1 3 6.563 4.825 1 -
T 6.25 9.125 10.50 1.59 2.07 5.5 8.625 7.50 1.75 -
180TC F, N, P, G, C 6.25 9.125 10.50 1.983 2.07 5.5 8.625 7.50 1.75 -
R 6.25 11.875 13.25 1.983 2.07 5.5 8.625 7.50 - -
T 6.25 9.125 10.50 1.59 2.69 7 9.500 8.50 1 -
22SV 210TC F, N, P, G, C 6.25 9.125 10.50 1.983 2.69 7 9.500 8.50 1 -
R 6.25 11.875 13.25 1.983 2.69 7 9.500 8.50 - 0.75
T 6.25 9.125 10.50 1.59 3.19 10 11.500 10.00 - -
250TC F, N, P, G, C 6.25 9.125 10.50 1.983 3.19 10 11.500 10.00 - -
R 6.25 11.875 13.25 1.983 3.19 10 11.500 10.00 - 1.75
T 6.25 9.125 10.50 1.59 3.19 11 12.750 12.50 - 0.75
280TC F, N, P, G, C 6.25 9.125 10.50 1.983 3.19 11 12.750 12.50 - 0.75
R 6.25 11.875 13.25 1.983 3.19 11 12.750 12.50 - 2.50
1SV – 22SV HORIZONTAL MOUNTING OPTION

PAGE 72
Commercial Water
Goulds Water Technology
33SV – 92SV HORIZONTAL MOUNTING OPTION
• Consists of e-SV pump with base mounting foot and footed motor for horizontal installations.
• Unit depicted may not show actual pump conguration. Use for mounting location only.
Series Motor Frame Flange A B E F G H - DIA.
182TC 0.5 3.5 2.25
8.63
184TC 2.75
13/32
213TC 1.25 4.25 2.75 9.5
215TC 3.5
254TC 1.75 5 4.12
11.25
33SV 256TC G, N 1.13 5
17/32
284TC 1.75 5.5 4.75
12.25
286TC 5.5
324TSC 2.25 6.25 5.25 16
326TSC 6
21/32
364TSC 2.88 7 5.63
18
365TSC 6.12
182TC 0.5 3.7 2.25
8.63
184TC 2.75
13/32
213TC 1.25 4.25 2.75 9.5
215TC 3.5
254TC 1.75 5 4.12
11.25
46/66/92SV 256TC G, N 2.5 5
17/32
284TC 1.75 5.5 4.75
16.5
286TC 5.5
324TSC 2.25 6.25 5.25
15.25
326TSC 6
21/32
364TSC 2.88 7 5.63
17
365TSC 6.12

PAGE 73
Commercial Water
Goulds Water Technology
125SV HORIZONTAL MOUNTING OPTION
• Consists of e-SV pump with base mounting foot and footed motor for horizontal installations.
• Unit depicted may not show actual pump conguration. Use for mounting location only.
Series Motor Frame Flange A E F G (ref.) H - Dia.
182TC 5.20 3.5 2.25
8.63
184TC 2.75 13/32
213TC 5.82 4.25 2.75 9.5
215TC 3.5
254TC 6.32 5 4.12
11.25
125SV 256TC G, N 5
17/32
284TC 6.32 5.5 4.75
12.25
286TC 5.5
324TSC 6.82 6.25 5.25 16
326TSC 6
21/32
364TSC 7.45 7 5.63
18
365TSC 6.12

PAGE 74
Commercial Water
Goulds Water Technology
Technical Data – Pump Hydraulics / Motor Sizing
1SV 3500 RPM
Motor Selection using SF Motor Selection 1.0 SF Casing/Sleeve
No. of Maximum NEMA NEMA Shutoff TDH Shutoff TDH Shutoff TDH Pressure Rating Pump Flange
Impellers HP draw Rated HP Motor Frame Rated HP Motor Frame (Feet) (psi) (Bar) (standard assy.) Rating
ODP TEFC ODP TEFC
30 3.45 56C 56C 184TC 184TC 860 372 25.7 40 Bar (580 psi)
29 3.34 56C 56C 5.00 184TC 184TC 835 362 24.9
28 3.22 56C 56C 184TC 184TC 810 351 24.2
27 3.11 56C 56C 184TC 184TC 780 338 23.3
26 2.99 3.00 56C 56C 56C 56C 750 325 22.4
25 2.88 56C 56C 56C 56C 720 312 21.5
24 2.76 56C 56C 56C 56C 695 301 20.7
23 2.67 56C 56C 3.00 56C 56C 665 288 19.8
22 2.53 56C 56C 56C 56C 635 275 18.9
21 2.42 56C 56C 56C 56C 610 264 18.2
20 2.30 56C 56C 56C 56C 580 251 17.3
19 2.19 56C 56C 56C 56C 550 238 16.4
18 2.07 2.00 56C 56C 56C 56C 520 225 15.5
17 1.96 56C 56C 56C 56C 485 210 14.5
16 1.84 56C 56C 2.00 56C 56C 455 197 13.6 25 Bar (362 psi) Class 250 / 300
15 1.73 56C 56C 56C 56C 425 184 12.7
14 1.61 56C 56C 56C 56C 400 173 11.9
13 1.50 1.50 56C 56C 56C 56C 375 162 11.2
12 1.38 56C 56C 56C 56C 345 149 10.3
11 1.27 56C 56C 1.50 56C 56C 315 136 9.4
10 1.15 1.00 56C 56C 56C 56C 290 126 8.7
9 1.04 56C 56C 56C 56C 255 110 7.6
8 0.92 56C 56C 1.00 56C 56C 230 100 6.9
7 0.81 0.75 56C 56C 56C 56C 200 87 6.0
6 0.69 56C 56C 0.75 56C 56C 175 76 5.2
5 0.58 56C 56C 56C 56C 145 63 4.3
4 0.46 0.50 56C 56C 56C 56C 115 50 3.4
3 0.35 56C 56C 0.50 56C 56C 85 37 2.5
2 0.23 56C 56C 56C 56C 60 26 1.8
3SV 3500 RPM
Motor Selection using SF Motor Selection 1.0 SF Casing/Sleeve
No. of Maximum NEMA NEMA Shutoff TDH Shutoff TDH Shutoff TDH Pressure Rating Pump Flange
Impellers HP draw Rated HP Motor Frame Rated HP Motor Frame (Feet) (psi) (Bar) (standard assy.) Rating
ODP TEFC ODP TEFC
30 6.24 213TC 213TC 213TC 213TC 1085 470 32.4
29 6.03 7.50 213TC 213TC 213TC 213TC 1050 455 31.3
28 5.82 213TC 213TC 7.50 213TC 213TC 1015 440 30.3
27 5.62 184TC 184TC 213TC 213TC 975 422 29.1 40 Bar (580 psi)
26 5.41 184TC 184TC 213TC 213TC 940 407 28.0
25 5.20 184TC 184TC 213TC 213TC 900 390 26.9
24 4.99 184TC 184TC 184TC 184TC 865 375 25.8
23 4.78 184TC 184TC 184TC 184TC 825 357 24.6
22 4.58 5.00 184TC 184TC 184TC 184TC 795 344 23.7
21 4.37 184TC 184TC 184TC 184TC 760 329 22.7
20 4.16 184TC 184TC 5.00 184TC 184TC 720 312 21.5
19 3.95 184TC 184TC 184TC 184TC 680 294 20.3
18 3.74 184TC 184TC 184TC 184TC 645 279 19.2
17 3.54 184TC 184TC 184TC 184TC 610 264 18.2
16 3.33 56C 56C 184TC 184TC 575 249 17.2 Class 250 / 300
15 3.12 56C 56C 184TC 184TC 540 234 16.1
14 2.91 3.00 56C 56C 56C 56C 500 217 14.9
13 2.70 56C 56C 56C 56C 465 201 13.9 25 Bar (362 psi)
12 2.50 56C 56C 3.00 56C 56C 430 186 12.8
11 2.29 56C 56C 56C 56C 395 171 11.8
10 2.08 2.00 56C 56C 56C 56C 360 156 10.7
9 1.87 56C 56C 2.00 56C 56C 320 139 9.5
8 1.66 56C 56C 56C 56C 285 123 8.5
7 1.46 1.50 56C 56C 56C 56C 250 108 7.5
6 1.25 56C 56C 1.50 56C 56C 215 93 6.4
5 1.04 1.00 56C 56C 56C 56C 180 78 5.4
4 0.83 0.75 56C 56C 1.00 56C 56C 145 63 4.3
3 0.62 0.50 56C 56C 0.75 56C 56C 105 45 3.1
2 0.42 56C 56C 0.50 56C 56C 70 30 2.1

PAGE 75
Commercial Water
Goulds Water Technology
TECHNICAL DATA – PUMP HYDRAULICS / MOTOR SIZING
5SV 3500 RPM
Motor Selection using SF Motor Selection 1.0 SF Casing/Sleeve
No. of Maximum NEMA NEMA Shutoff TDH Shutoff TDH Shutoff TDH Pressure Rating Pump Flange
Impellers HP draw Rated HP Motor Frame Rated HP Motor Frame (Feet) (psi) (Bar) (standard assy.) Rating
ODP TEFC ODP TEFC
27 8.80 10.00 215TC 215TC 215TC 215TC 975 422 29.1
26 8.48 213TC 213TC 10.00 215TC 215TC 940 407 28.0 40 Bar (580 psi)
25 8.15 213TC 213TC 215TC 215TC 900 390 26.9
24 7.82 213TC 213TC 215TC 215TC 865 375 25.8
23 7.50 213TC 213TC 213TC 213TC 825 357 24.6
22 7.17 7.50 213TC 213TC 213TC 213TC 785 340 23.4
21 6.85 213TC 213TC 213TC 213TC 745 323 22.2
20 6.52 213TC 213TC 7.50 213TC 213TC 715 310 21.3
19 6.19 213TC 213TC 213TC 213TC 685 297 20.4
18 5.87 213TC 213TC 213TC 213TC 650 282 19.4
17 5.54 184TC 184TC 213TC 213TC 615 266 18.4
16 5.22 184TC 184TC 213TC 213TC 575 249 17.2
15 4.89 184TC 184TC 184TC 184TC 540 234 16.1 Class 250 / 300
14 4.56 5.00 184TC 184TC 184TC 184TC 505 219 15.1
13 4.24 184TC 184TC 5.00 184TC 184TC 470 204 14.0 25 Bar (362 psi)
12 3.91 184TC 184TC 184TC 184TC 430 186 12.8
11 3.59 184TC 184TC 184TC 184TC 395 171 11.8
10 3.26 56C 56C 184TC 184TC 360 156 10.7
9 2.93 3.00 56C 56C 56C 56C 320 139 9.5
8 2.61 56C 56C 3.00 56C 56C 285 123 8.5
7 2.28 2.00 56C 56C 56C 56C 250 108 7.5
6 1.96 56C 56C 2.00 56C 56C 220 95 6.6
5 1.63 1.50 56C 56C 56C 56C 180 78 5.4
4 1.30 56C 56C 1.50 56C 56C 145 63 4.3
3 0.98 1.00 56C 56C 1.00 56C 56C 110 48 3.3
2 0.65 0.75 56C 56C 0.75 56C 56C 70 30 2.1
10SV 3500 RPM
Motor Selection using SF Motor Selection 1.0 SF Casing/Sleeve
No. of Maximum NEMA NEMA Shutoff TDH Shutoff TDH Shutoff TDH Pressure Rating Pump Flange
Impellers HP draw Rated HP Motor Frame Rated HP Motor Frame (Feet) (psi) (Bar) (standard assy.) Rating
ODP TEFC ODP TEFC
20 17.84 20.00 254TC 256TC 254TC 256TC 1150 498 34.3 Victaulic
19 16.95 215TC 254TC 20.00 254TC 256TC 1095 474 32.7
18 16.06 215TC 254TC 254TC 256TC 1035 448 30.9 40 Bar (580 psi)
17 15.16 15.00 215TC 254TC 254TC 256TC 975 422 29.1
16 14.27 215TC 254TC 215TC 254TC 920 398 27.5
15 13.38 215TC 254TC 215TC 254TC 860 372 25.7
14 12.49 215TC 215TC 15.00 215TC 254TC 805 349 24.0
13 11.60 215TC 215TC 215TC 254TC 745 323 22.2
12 10.70 10.00 215TC 215TC 215TC 254TC 690 299 20.6
11 9.81 215TC 215TC 215TC 215TC 630 273 18.8
10 8.92 215TC 215TC 10.00 215TC 215TC 575 249 17.2 Class 250 / 300
9 8.03 213TC 213TC 215TC 215TC 520 225 15.5
8 7.14 7.50 213TC 213TC 213TC 213TC 460 199 13.7 25 Bar (362 psi)
7 6.24 213TC 213TC 7.50 213TC 213TC 400 173 11.9
6 5.35 184TC 184TC 213TC 213TC 340 147 10.1
5 4.46 5.00 184TC 184TC 5.00 184TC 184TC 285 123 8.5
4 3.57 184TC 184TC 184TC 184TC 225 97 6.7
3 2.68 3.00 56C 56C 3.00 56C 56C 170 74 5.1
2 1.78 2.00 56C 56C 2.00 56C 56C 115 50 3.4
1 0.89 0.75 56C 56C 1.00 56C 56C 60 26 1.8

PAGE 76
Commercial Water
Goulds Water Technology
TECHNICAL DATA – PUMP HYDRAULICS / MOTOR SIZING
15SV 3500 RPM
Motor Selection using SF Motor Selection 1.0 SF Casing/Sleeve
No. of Maximum NEMA NEMA Shutoff TDH Shutoff TDH Shutoff TDH Pressure Rating Pump Flange
Impellers HP draw Rated HP Motor Frame Rated HP Motor Frame (Feet) (psi) (Bar) (standard assy.) Rating
ODP TEFC ODP TEFC
15 28.50 254TC 284TC 30.00 284TC 286TC 1060 459 31.6
14 26.60 25.00 254TC 284TC 284TC 286TC 990 429 29.5 40 Bar (580 psi)
13 24.70 254TC 284TC 254TC 284TC 915 396 27.3
12 22.80 254TC 256TC 25.00 254TC 284TC 850 368 25.4
11 20.90 20.00 254TC 256TC 254TC 284TC 780 338 23.3
10 19.00 254TC 256TC 254TC 256TC 705 305 21.0
9 17.10 215TC 254TC 20.00 254TC 256TC 635 275 18.9
8 15.20 15.00 215TC 254TC 254TC 256TC 565 245 16.9 Class 250 / 300
7 13.30 215TC 254TC 15.00 215TC 254TC 485 210 14.5
6 11.40 10.00 215TC 215TC 215TC 254TC 420 182 12.5 25 Bar (362 psi)
5 9.50 215TC 215TC 10.00 215TC 215TC 345 149 10.3
4 7.60 7.50 213TC 213TC 215TC 215TC 275 119 8.2
3 5.70 5.00 184TC 184TC 7.50 213TC 213TC 210 91 6.3
2 3.80 184TC 184TC 5.00 184TC 184TC 140 61 4.2
1 1.90 2.00 56C 56C 2.00 56C 56C 70 30 2.1
22SV 3500 RPM
Motor Selection using SF Motor Selection 1.0 SF Casing/Sleeve
No. of Maximum NEMA NEMA Shutoff TDH Shutoff TDH Shutoff TDH Pressure Rating Pump Flange
Impellers HP draw Rated HP Motor Frame Rated HP Motor Frame (Feet) (psi) (Bar) (standard assy.) Rating
ODP TEFC ODP TEFC
12 28.92 254TC 284TC 30.00 284TC 286TC 880 381 26.3 40 Bar (580 psi)
11 26.51 25.00 254TC 284TC 284TC 286TC 810 351 24.2
10 24.10 254TC 284TC 25.00 254TC 284TC 735 318 21.9
9 21.69 20.00 254TC 256TC 254TC 284TC 660 286 19.7
8 19.28 254TC 256TC 20.00 254TC 256TC 585 253 17.5
7 16.87 215TC 254TC 254TC 256TC 515 223 15.4 Class 250 / 300
6 14.46 15.00 215TC 254TC 15.00 215TC 254TC 440 191 13.1 25 Bar (362 psi)
5 12.05 215TC 254TC 215TC 254TC 365 158 10.9
4 9.64 10.00 215TC 215TC 10.00 215TC 215TC 295 128 8.8
3 7.23 7.50 213TC 213TC 7.50 213TC 213TC 220 95 6.6
2 4.82 5.00 184TC 184TC 5.00 184TC 184TC 245 106 7.3
1 2.41 3.00 56C 56C 3.00 56C 56C 70 30 2.1

PAGE 77
Commercial Water
Goulds Water Technology
33SV 3500 RPM
# of Impellers / Maximum HP Motor HP for use Motor HP for use Shutoff TDH Shutoff TDH Casing / Sleeve Stages requiring Pump Flange
# reduced Draw with 1.15 SF with Hydrovar (Feet) (Bar) Pressure rating Thrust Balancing Rating
Diameter Motor (1.0 SF) (Standard Assy.) Piston
10 54.3 1125 34
10/2 52.8 60 1096 33
10/1 51.3 50 1066 32
9 48.8 1012 30
9/1 47.4 983 29
9/2 45.9 50 954 28
40 Bar (580 PSI)
8 43.4 900 27
8/1 41.9 871 26 Thrust Piston Class 250 / 300
8/2 40.5 40 842 25 Required
7 38 787 23
7/1 36.5 758 23
7/2 35 40 729 22
6 32.6 576 20
6/1 31.1 30 646 19
6/2 29.6 617 18
5 27.1 30 562 17
5/1 25.7 25 533 16
5/2 24.2 25 504 15
4 21.7 450 13
4/1 20.2 20 421 13
4/2 18.8 20 392 12 25 Bar (362 PSI)
3 16.3 337 10 1
3/1 14.7 15 310 9
3/2 13.2 15 281 8 Class 125 / 150
2 10.9 10 225 7
2/1 9.4 10 196 6
2/2 7.9 7.5 167 5
1 5.4 5 7.5 113 3
1/1 4 5 84 3
1 Pump assembly may be modied for 40 bar (580 psi) application – contact factory.
TECHNICAL DATA – PUMP HYDRAULICS / MOTOR SIZING

PAGE 78
Commercial Water
Goulds Water Technology
46SV 3500 RPM
# of Impellers / Maximum HP Motor HP for use Motor HP for use Shutoff TDH Shutoff TDH Casing / Sleeve Stages requiring Pump Flange
# reduced Draw with 1.15 SF with Hydrovar (Feet) (Bar) Pressure rating Thrust Balancing Rating
Diameter Motor (1.0 SF) (Standard Assy.) Piston
10/2 77.8 1210 36.1
9 73.2 75 1137 33.9
9/1 71.5 1111 33.2
9/2 69.7 75 1085 32.4
8 65 1010 30.2
8/1 63.3 60 984 29.4
8/2 61.6 959 28.6 40 Bar (580 PSI)
7 56.9 884 26.4
7/1 55.2 60 858 25.6
7/2 53.4 50 832 24.8 Thrust Piston Class 250 / 300
6 48.8 758 22.6 Required
6/1 47.1 50 732 21.9
6/2 45.3 706 21.1
5 40.7 40 632 18.9
5/1 38.9 40 605 18.1
5/2 37.2 580 17.3
4 32.5 505 15.1
4/1 30.8 30 30 479 14.3
4/2 29 453 13.5
3 24.4 25 379 11.3 25 Bar (362 PSI)
3/1 22.7 20 25 353 10.5 1
3/2 20.9 327 9.8
2 16.3 20 253 7.6 Class 125 / 150
2/1 14.5 15 15 226 6.7
2/2 12.8 200 6.0
1 8.5 10 10 127 3.8
1/1 6.7 7.5 7.5 102 3.0
66SV 3500 RPM
# of Impellers / Maximum HP Motor HP for use Motor HP for use Shutoff TDH Shutoff TDH Casing / Sleeve Stages requiring Pump Flange
# reduced Draw with 1.15 SF with Hydrovar (Feet) (Bar) Pressure rating Thrust Balancing Rating
Diameter Motor (1.0 SF) (Standard Assy.) Piston
6 73.2 850 25.4
6/1 70.2 75 75 822 24.5 40 Bar (580 PSI)
6/2 67.2 796 23.8
5 61 60 707 21.1
5/1 58 60 681 20.3 Thrust Piston Class 250 / 300
5/2 55 655 19.6 Required
4 48.8 50 566 16.9
4/1 45.8 50 540 16.1
4/2 42.8 40 513 15.3
3 36.6 40 424 12.7
25 Bar (362 PSI)
3/1 33.6 30 398 11.9 1
3/2 30.6 30 372 11.1
2 24.4 25 25 283 8.4
Class 125 / 150
2/1 21.4 20 257 7.7
2/2 18.4 20 230 6.9
1 12.2 15 15 142 4.2
1/1 9.2 10 10 115 3.4
1 Pump assembly may be modied for 40 bar (580 psi) application – contact factory.
TECHNICAL DATA – PUMP HYDRAULICS / MOTOR SIZING

PAGE 79
Commercial Water
Goulds Water Technology
92SV 3500 RPM
# of Impellers / Maximum HP Motor HP for use Motor HP for use Shutoff TDH Shutoff TDH Casing / Sleeve Stages requiring Pump Flange
# reduced Draw with 1.15 SF with Hydrovar (Feet) (Bar) Pressure rating Thrust Balancing Rating
Diameter Motor (1.0 SF) (Standard Assy.) Piston
5/1 73.8 75 732 21.9
5/2 70.3 75 707 21.1
4 61.9 605 18.1
Thrust Piston Class 250 / 300
4/1 58.3 60 60 580 17.3 Required
4/2 54.8 556 16.6
3 46.5 50 50 454 13.6
3/1 42.9 40 429 12.8 25 Bar (362 PSI)
3/2 39.4 40 405 12.1 1
2 31 30 305 9.1
2/1 27.4 30 278 8.3 Class 125 / 150
2/2 23.4 25 25 253 7.6
1 15.5 15 20 151 4.5
1/1 12 15 127 3.8
1 Pump assembly may be modied for 40 bar (580 psi) application – contact factory.
125SV 3500 RPM
Motor Selection using SF Motor Selection 1.0 SF Casing/Sleeve
No. of Maximum NEMA NEMA Shutoff TDH Shutoff TDH Shutoff TDH Pressure Rating Pump Flange
Impellers HP draw Rated HP Motor Frame Rated HP Motor Frame (Feet) (psi) (Bar) (standard assy.) Rating
ODP TEFC ODP TEFC
5/0C 82.32 75 364TSC 365TSC Contact Factory 643 278 19.2
5/5B 67.84 60 324TSC 326TSC 75 364TSC 365TSC 555 240 16.6 Class 250 / 300
4/3B 57.35 50 324TSC 326TSC 60 324TSC 326TSC 461 200 13.8 25 Bar (362 psi)
3/3A 45.60 40 286TC 286TC 50 324TSC 326TSC 358 155 10.7
2/0C 34.79 30 284TC 286TC 40 286TC 286TC 263 114 7.8 Class 125 / 150
1/0C 17.40 15 215TC 254TC 20 254TC 256TC 131 57 3.9
TECHNICAL DATA – PUMP HYDRAULICS / MOTOR SIZING

PAGE 80
Commercial Water
Goulds Water Technology
1SV 1750 RPM
Motor Selection using SF Motor Selection 1.0 SF Casing/Sleeve
No. of Maximum NEMA NEMA Shutoff TDH Shutoff TDH Shutoff TDH Pressure Rating Pump Flange
Impellers HP draw Rated HP Motor Frame Rated HP Motor Frame (Feet) (psi) (Bar) (standard assy.) Rating
ODP TEFC ODP TEFC
30 0.44 56C 56C 56C 56C 210 91 6.3
29 0.43 56C 56C 56C 56C 203 88 6.1
28 0.41 56C 56C 56C 56C 196 85 5.8
27 0.40 56C 56C 56C 56C 189 82 5.6
26 0.38 56C 56C 56C 56C 181 78 5.4
25 0.37 56C 56C 56C 56C 175 76 5.2
24 0.36 56C 56C 56C 56C 168 73 5.0
23 0.34 56C 56C 56C 56C 162 70 4.8
22 0.33 56C 56C 56C 56C 155 67 4.6
21 0.31 56C 56C 56C 56C 148 64 4.4
20 0.30 56C 56C 56C 56C 141 61 4.2
19 0.28 56C 56C 56C 56C 134 58 4.0
18 0.27 56C 56C 56C 56C 127 55 3.8
17 0.25 0.50 56C 56C 0.50 56C 56C 120 52 3.6 25 Bar (362 psi) Class 250 / 300
15 0.22 56C 56C 56C 56C 107 46 3.2
14 0.21 56C 56C 56C 56C 100 43 3.0
13 0.19 56C 56C 56C 56C 93 40 2.8
12 0.18 56C 56C 56C 56C 86 37 2.6
11 0.16 56C 56C 56C 56C 79 34 2.4
10 0.15 56C 56C 56C 56C 72 31 2.1
9 0.13 56C 56C 56C 56C 65 28 1.9
8 0.12 56C 56C 56C 56C 58 25 1.7
7 0.10 56C 56C 56C 56C 50 22 1.5
6 0.09 56C 56C 56C 56C 43 19 1.3
5 0.07 56C 56C 56C 56C 36 16 1.1
4 0.06 56C 56C 56C 56C 29 13 0.9
3 0.04 56C 56C 56C 56C 22 10 0.7
2 0.03 56C 56C 56C 56C 15 6 0.4
3SV 1750 RPM
Motor Selection using SF Motor Selection 1.0 SF Casing/Sleeve
No. of Maximum NEMA NEMA Shutoff TDH Shutoff TDH Shutoff TDH Pressure Rating Pump Flange
Impellers HP draw Rated HP Motor Frame Rated HP Motor Frame (Feet) (psi) (Bar) (standard assy.) Rating
ODP TEFC ODP TEFC
30 0.73 56C 56C 56C 56C 267 116 8.0
29 0.71 56C 56C 56C 56C 257 111 7.7
28 0.68 0.75 56C 56C 56C 56C 249 108 7.4
27 0.66 56C 56C 56C 56C 240 104 7.2
26 0.63 56C 56C 0.75 56C 56C 231 100 6.9
25 0.61 56C 56C 56C 56C 222 96 6.6
24 0.59 56C 56C 56C 56C 213 92 6.4
23 0.56 56C 56C 56C 56C 204 88 6.1
22 0.54 56C 56C 56C 56C 194 84 5.8
21 0.51 56C 56C 56C 56C 184 80 5.5
20 0.49 56C 56C 56C 56C 167 72 5.0
19 0.46 56C 56C 56C 56C 162 70 4.8
18 0.44 56C 56C 56C 56C 156 68 4.7
17 0.41 56C 56C 56C 56C 150 65 4.5
16 0.39 56C 56C 56C 56C 141 61 4.2 25 Bar (362 psi) Class 250 / 300
15 0.37 56C 56C 56C 56C 132 57 3.9
14 0.34 56C 56C 56C 56C 124 54 3.7
13 0.32 0.50 56C 56C 56C 56C 115 50 3.4
12 0.29 56C 56C 56C 56C 105 45 3.1
11 0.27 56C 56C 0.50 56C 56C 97 42 2.9
10 0.24 56C 56C 56C 56C 89 39 2.7
9 0.22 56C 56C 56C 56C 80 35 2.4
8 0.20 56C 56C 56C 56C 71 31 2.1
7 0.17 56C 56C 56C 56C 63 27 1.9
6 0.15 56C 56C 56C 56C 54 23 1.6
5 0.12 56C 56C 56C 56C 45 19 1.3
4 0.10 56C 56C 56C 56C 36 16 1.1
3 0.07 56C 56C 56C 56C 28 12 0.8
2 0.05 56C 56C 56C 56C 19 8 0.6
TECHNICAL DATA – PUMP HYDRAULICS / MOTOR SIZING

PAGE 81
Commercial Water
Goulds Water Technology
5SV 1750 RPM
Motor Selection using SF Motor Selection 1.0 SF Casing/Sleeve
No. of Maximum NEMA NEMA Shutoff TDH Shutoff TDH Shutoff TDH Pressure Rating Pump Flange
Impellers HP draw Rated HP Motor Frame Rated HP Motor Frame (Feet) (psi) (Bar) (standard assy.) Rating
ODP TEFC ODP TEFC
27 1.02 56C 56C 1.50 56C 56C 239 104 7.1
26 0.98 1.00 56C 56C 56C 56C 230 100 6.9
25 0.94 56C 56C 56C 56C 220 95 6.6
24 0.90 56C 56C 1.00 56C 56C 212 92 6.3
23 0.87 56C 56C 56C 56C 203 88 6.1
22 0.83 56C 56C 56C 56C 195 84 5.8
21 0.79 .75 56C 56C 56C 56C 186 81 5.6
20 0.75 56C 56C 56C 56C 177 77 5.3
19 0.72 56C 56C 56C 56C 167 72 5.0
18 0.68 56C 56C 56C 56C 159 69 4.7
17 0.64 56C 56C 0.75 56C 56C 150 65 4.5
16 0.60 56C 56C 56C 56C 142 61 4.2
15 0.57 56C 56C 56C 56C 133 58 4.0 25 Bar (362 psi) Class 250 / 300
14 0.53 56C 56C 56C 56C 124 54 3.7
13 0.49 56C 56C 56C 56C 114 49 3.4
12 0.45 56C 56C 56C 56C 106 46 3.2
11 0.41 56C 56C 56C 56C 97 42 2.9
10 0.38 56C 56C 56C 56C 88 38 2.6
9 0.34 0.50 56C 56C 56C 56C 79 34 2.4
8 0.30 56C 56C 0.50 56C 56C 71 31 2.1
7 0.26 56C 56C 56C 56C 62 27 1.9
6 0.23 56C 56C 56C 56C 54 23 1.6
5 0.19 56C 56C 56C 56C 45 19 1.3
4 0.15 56C 56C 56C 56C 37 16 1.1
3 0.11 56C 56C 56C 56C 28 12 0.8
2 0.08 56C 56C 56C 56C 19 8 0.6
10SV 1750 RPM
Motor Selection using SF Motor Selection 1.0 SF Casing/Sleeve
No. of Maximum NEMA NEMA Shutoff TDH Shutoff TDH Shutoff TDH Pressure Rating Pump Flange
Impellers HP draw Rated HP Motor Frame Rated HP Motor Frame (Feet) (psi) (Bar) (standard assy.) Rating
ODP TEFC ODP TEFC
20 2.34 3.00 56C 56C 56C 56C 286 124 8.5
19 2.22 56C 56C 3.00 56C 56C 272 118 8.1
18 2.11 56C 56C 56C 56C 257 111 7.7
17 1.99 2.00 56C 56C 56C 56C 243 105 7.3
16 1.87 56C 56C 2.00 56C 56C 229 99 6.8
15 1.76 56C 56C 56C 56C 214 93 6.4
14 1.64 56C 56C 56C 56C 200 87 6.0
13 1.52 1.50 56C 56C 56C 56C 185 80 5.5
12 1.40 56C 56C 56C 56C 170 74 5.1
11 1.29 56C 56C 1.50 56C 56C 154 67 4.6 25 Bar (362 psi) Class 250 / 300
10 1.17 1.00 56C 56C 56C 56C 141 61 4.2
9 1.05 56C 56C 56C 56C 127 55 3.8
8 0.94 56C 56C 1.00 56C 56C 113 49 3.4
7 0.82 0.75 56C 56C 56C 56C 98 42 2.9
6 0.70 56C 56C 0.75 56C 56C 85 37 2.5
5 0.59 56C 56C 56C 56C 71 31 2.1
4 0.47 56C 56C 56C 56C 57 25 1.7
3 0.35 0.50 56C 56C 0.50 56C 56C 43 19 1.3
2 0.23 56C 56C 56C 56C 29 13 0.9
1 0.12 56C 56C 56C 56C 14 6 0.4
TECHNICAL DATA – PUMP HYDRAULICS / MOTOR SIZING

PAGE 82
Commercial Water
Goulds Water Technology
15SV 1750 RPM
Motor Selection using SF Motor Selection 1.0 SF Casing/Sleeve
No. of Maximum NEMA NEMA Shutoff TDH Shutoff TDH Shutoff TDH Pressure Rating Pump Flange
Impellers HP draw Rated HP Motor Frame Rated HP Motor Frame (Feet) (psi) (Bar) (standard assy.) Rating
ODP TEFC ODP TEFC
15 3.56 5.00 184TC 184TC 184TC 184TC 263 114 7.8
14 3.32 56C 56C 5.00 184TC 184TC 245 106 7.3
13 3.08 56C 56C 184TC 184TC 228 99 6.8
12 2.84 3.00 56C 56C 56C 56C 210 91 6.3
11 2.61 56C 56C 3.00 56C 56C 192 83 5.7
10 2.37 56C 56C 56C 56C 175 76 5.2
9 2.13 2.00 56C 56C 56C 56C 158 68 4.7
8 1.90 56C 56C 2.00 56C 56C 140 61 4.2 25 Bar (362 psi) Class 250 / 300
7 1.66 1.50 56C 56C 56C 56C 120 52 3.6
6 1.42 56C 56C 1.50 56C 56C 103 45 3.1
5 1.19 1.00 56C 56C 56C 56C 86 37 2.6
4 0.95 56C 56C 1.00 56C 56C 68 29 2.0
3 0.71 0.75 56C 56C 0.75 56C 56C 51 22 1.5
2 0.47 0.50 56C 56C 0.50 56C 56C 35 15 1.0
1 0.24 56C 56C 56C 56C 8 3 0.2
22SV 1750 RPM
Motor Selection using SF Motor Selection 1.0 SF Casing/Sleeve
No. of Maximum NEMA NEMA Shutoff TDH Shutoff TDH Shutoff TDH Pressure Rating Pump Flange
Impellers HP draw Rated HP Motor Frame Rated HP Motor Frame (Feet) (psi) (Bar) (standard assy.) Rating
ODP TEFC ODP TEFC
12 3.58 5.00 184TC 184TC 5.00 184TC 184TC 220 95 6.6
11 3.28 56C 56C 184TC 184TC 202 87 6.0
10 2.98 3.00 56C 56C 56C 56C 183 79 5.5
9 2.68 56C 56C 3.00 56C 56C 165 71 4.9
8 2.38 56C 56C 56C 56C 147 64 4.4
7 2.09 2.00 56C 56C 56C 56C 129 56 3.8 25 Bar (362 psi) Class 250 / 300
6 1.79 56C 56C 2.00 56C 56C 110 48 3.3
5 1.49 1.50 56C 56C 1.50 56C 56C 91 39 2.7
4 1.19 56C 56C 56C 56C 74 32 2.2
3 0.89 0.75 56C 56C 1.00 56C 56C 55 24 1.6
2 0.60 0.50 56C 56C 0.75 56C 56C 36 16 1.1
1 0.30 56C 56C 0.50 56C 56C 19 8 0.6
TECHNICAL DATA – PUMP HYDRAULICS / MOTOR SIZING

PAGE 83
Commercial Water
Goulds Water Technology
33SV 1750 RPM
Motor Selection using SF Motor Selection 1.0 SF
NEMA NEMA
Shutoff Shutoff Shutoff Casing/Sleeve
No. of Maximum Motor Frame Motor Frame TDH TDH TDH Pressure Rating
Pump Flange
Impellers HP draw Rated HP
Rated HP (Feet) (psi) (Bar) (standard assy.) Rating
ODP TEFC ODP TEFC
10 7.0 278 120 8
10/1 6.8 271 117 8
10/2 6.8 264 114 8
9 6.3 7.5 7.5 250 108 7
9/1 6.1 242 105 7
9/2 6.1 235 102 7
8 5.6 222 96 7
8/1 5.4 214 93 6
8/2 5.4 207 90 6
7 4.9 195 84 6
7/1 4.7 5 189 82 6
7/2 4.7 181 78 5
6 4.2 168 73 5
6/1 4.0 184TC 5 184TC 160 69 5 25 Bar (362 psi) Class 125 / 150
6/2 3.9 153 66 5
5 3.5 139 60 4
5/1 3.3 131 57 4
5/2 3.2 124 54 4
4 2.8 111 48 3
4/1 2.6 103 45 3
4/2 2.5 97 42 3
3 2.1 3 83 36 2
3/1 2.0 3 76 33 2
3/2 1.8 70 30 2
2 1.4 56 24 2
2/1 1.2 48 21 1
2/2 1.1 41 18 1
1 0.7 28 12 1
Stages
Requiring
Thrust
Balancing
Piston
TECHNICAL DATA – PUMP HYDRAULICS / MOTOR SIZING

PAGE 84
Commercial Water
Goulds Water Technology
46SV 1750 RPM
Motor Selection using SF Motor Selection 1.0 SF
NEMA NEMA
Shutoff Shutoff Shutoff Casing/Sleeve
No. of Maximum Motor Frame Motor Frame TDH TDH TDH Pressure Rating
Pump Flange
Impellers HP draw Rated HP
Rated HP (Feet) (psi) (Bar) (standard assy.) Rating
ODP TEFC ODP TEFC
10/2 10.0 298 129 9
9 9.3 10 215TC 215TC 280 121 8
9/1 9.0 274 119 8
9/2 8.8 10 213TC 215TC 268 116 8
8 8.2 249 108 7
8/1 8.0 242 105 7
8/2 7.8 236 102 7
7 7.2 7.5 217 94 6
7/1 7.0 212 92 6
7/2 6.8 206 89 6
6 6.2 7.5 189 82 6
6/1 6.0 182 79 5
6/2 5.8 174 75 5 25 Bar (362 psi) Class 125 / 150
5 5.2 156 68 5
5/1 5.0 184TC 150 65 4
5/2 4.7 5 144 62 4
4 4.1 5 184TC 125 54 4
4/1 3.8 118 51 4
4/2 3.7 113 49 3
3 3.1 93 40 3
3/1 2.9 87 38 3
3/2 2.6 79 34 2
2 2.0 3
3 63 27 2
2/1 1.8 55 24 2
2/2 1.6 49 21 1
1 1.0 31 13 1
Stages
Requiring
Thrust
Balancing
Piston
66SV 1750 RPM
Motor Selection using SF Motor Selection 1.0 SF
NEMA NEMA
Shutoff Shutoff Shutoff Casing/Sleeve
No. of Maximum Motor Frame Motor Frame TDH TDH TDH Pressure Rating
Pump Flange
Impellers HP draw Rated HP
Rated HP (Feet) (psi) (Bar) (standard assy.) Rating
ODP TEFC ODP TEFC
6 9.0 10 215TC 215TC 211 91 6
6/1 8.6 10 213TC 215TC 203 88 6
6/2 8.3 197 85 6
5 7.5 175 76 5
5/1 7.1 7.5 168 73 5
5/2 6.9 7.5 162 70 5
4 6.0 140 61 4
4/1 5.6 134 58 4 25 Bar (362 psi) Class 125 / 150
4/2 5.4 184TC 127 55 4
3 4.5 5 184TC 106 46 3
3/1 4.1 5 98 42 3
3/2 3.9 92 40 3
2 3.0 70 30 2
2/1 2.6 3 64 28 2
2/2 2.4 3 57 25 2
1 1.5 36 15 1
Stages
Requiring
Thrust
Balancing
Piston
TECHNICAL DATA – PUMP HYDRAULICS / MOTOR SIZING

PAGE 85
Commercial Water
Goulds Water Technology
125SV 1750 RPM
Motor Selection using SF Motor Selection 1.0 SF Casing/Sleeve
No. of Maximum NEMA NEMA Shutoff TDH Shutoff TDH Shutoff TDH Pressure Rating Pump Flange
Impellers HP draw Rated HP Motor Frame Rated HP Motor Frame (Feet) (psi) (Bar) (standard assy.) Rating
ODP TEFC ODP TEFC
8/0C 16.47 15 215TC 254TC 20 254TC 256TC 257 111 7.7
7/0C 14.22 15 215TC 254TC 15 215TC 254TC 225 97 6.7
6/6A 11.4 10 213TC 215TC 15 215TC 254TC 179 78 5.3
5/5A 9.5 10 213TC 215TC 10 213TC 215TC 150 65 4.5 25 Bar (362 psi) Class 125 / 150
4/0C 8.23 7.5 184TC 184TC 10 213TC 215TC 128 55 3.8
3/3A 5.70 5 182TC 184TC 7.5 184TC 184TC 89 39 2.7
2/0C 4.36 5 182TC 184TC 5 182TC 184TC 66 29 2.0
92SV 1750 RPM
Motor Selection using SF Motor Selection 1.0 SF
NEMA NEMA
Shutoff Shutoff Shutoff Casing/Sleeve
No. of Maximum Motor Frame Motor Frame TDH TDH TDH Pressure Rating
Pump Flange
Impellers HP draw Rated HP
Rated HP (Feet) (psi) (Bar) (standard assy.) Rating
ODP TEFC ODP TEFC
6 11.5 227 98 7
6/1 11.1 15 215TC 254TC 221 96 7
6/2 10.7 10 215TC 215TC 215 93 6
5 9.8 190 82 6
5/1 9.7 10 213TC 215TC 184 80 5
5/2 9.2 178 77 5
4 7.7 153 66 5
4/1 7.6 146 63 4
4/2 7.1 7.5 7.5 140 61 4 25 Bar (362 psi) Class 125 / 150
3 5.8 114 49 3
3/1 5.6 107 46 3
3/2 5.1 184TC 184TC 102 44 3
2 3.9 5 76 33 2
2/1 3.6 5 69 30 2
2/2 3.1 64 28 2
1 1.9 3
3 37 16 1
1/1 1.6 31 14 1
Stages
Requiring
Thrust
Balancing
Piston
TECHNICAL DATA – PUMP HYDRAULICS / MOTOR SIZING

PAGE 86
Commercial Water
Goulds Water Technology
TECHNICAL DATA – WATER PROPERTY CHART
Temp ºF Temp ºC Specic Volume Specic Gravity Weight Vapor Pressure
(Cubic ft/lb) @ 39.2ºF @ 60ºF @ 68ºF (lb/cubic ft) (psi Abs)
32 0.0 0.01602 1.000 1.001 1.002 62.42 0.088
35 1.7 0.01602 1.000 1.001 1.002 62.42 0.100
40 4.4 0.01602 1.000 1.001 1.002 62.42 0.122
50 10.0 0.01603 0.999 1.001 1.002 62.38 0.178
60 15.6 0.01604 0.999 1.000 1.001 62.34 0.256
70 21.1 0.01606 0.998 0.999 1.000 62.27 0.363
80 26.7 0.01608 0.996 0.998 0.999 62.19 0.507
90 32.2 0.0161 0.995 0.996 0.997 62.11 0.698
100 37.8 0.01613 0.993 0.994 0.995 62.00 0.949
120 48.9 0.0162 0.989 0.990 0.991 61.73 1.692
140 60.0 0.01629 0.983 0.985 0.986 61.39 2.889
160 71.1 0.01639 0.977 0.979 0.979 61.01 4.741
180 82.2 0.01651 0.970 0.972 0.973 60.57 7.510
200 93.3 0.01663 0.963 0.964 0.966 60.13 11.526
212 100.0 0.01672 0.958 0.959 0.960 59.81 14.696
220 104.4 0.01677 0.955 0.956 0.957 59.63 17.186
240 115.6 0.01692 0.947 0.948 0.949 59.10 24.97
260 126.7 0.01709 0.938 0.939 0.940 58.51 35.43
280 137.8 0.01726 0.928 0.929 0.930 58.00 49.20
300 148.9 0.01745 0.918 0.919 0.920 57.31 67.01
320 160.0 0.01756 0.908 0.909 0.910 56.66 89.66
340 171.1 0.01787 0.896 0.898 0.899 55.96 118.01
360 182.2 0.01811 0.885 0.886 0.887 55.22 153.04
380 193.3 0.01836 0.873 0.874 0.875 54.47 195.77
400 204.4 0.01864 0.859 0.860 0.862 53.65 247.31
420 215.6 0.01894 0.846 0.847 0.848 52.80 308.83
440 226.7 0.01926 0.832 0.833 0.834 51.92 381.59
460 237.8 0.0196 0.817 0.818 0.819 51.02 466.9
480 248.9 0.02 0.801 0.802 0.803 50.00 566.1
500 260.0 0.0204 0.785 0.786 0.787 49.02 680.8
520 271.1 0.0209 0.765 0.766 0.767 47.85 812.4
540 282.2 0.0215 0.746 0.747 0.748 46.51 962.5
560 293.3 0.0221 0.726 0.727 0.728 45.30 1133.1
580 304.4 0.0228 0.703 0.704 0.704 43.90 1325.8
600 315.6 0.0236 0.678 0.679 0.680 42.30 1542.9
620 326.7 0.0247 0.649 0.650 0.650 40.50 1786.6
640 337.8 0.026 0.617 0.618 0.618 38.50 2059.7
660 348.9 0.0278 0.577 0.577 0.578 36.00 2365.4
680 360.0 0.0305 0.525 0.526 0.527 32.80 2708.1
700 371.1 0.0369 0.434 0.435 0.435 27.10 3093.7

PAGE 87
Commercial Water
Goulds Water Technology
TECHNICAL DATA – NPSH
NPSH
The minimum operating values that can be reached
at the pump suction end are limited by the onset of
cavitation.
Cavitation is the formation of vapor-lled cavities within
liquids where the pressure is locally reduced to a criti-
cal value, or where the local pressure is equal to, or just
below the vapor pressure of the liquid.
The vapor-lled cavities ow with the current and when
they reach a higher pressure ares the vapor contained
in the cavities condenses. The cavities collide, generat-
ing pressure waves that are transmitted to the walls.
These, being subjected to stress cycles, gradually
become deformed and yield due to fatigue. This phe-
nomenon, characterized by a metallic noise produced
by the hammering on the pipe walls, is called incipient
cavitation.
The damage caused by cavitation may be magnied by
electrochemical corrosion and a local rise in tempera-
ture due to the plastic deformation of the walls. The
materials that offer the highest resistance to heat and
corrosion are alloy steels, especially austenitic steel.
The conditions that trigger cavitation may be assessed
by calculating the total net suction head, referred to in
technical literature with the acronym NPSH (Net Posi-
tive Suction Head).
The NPSH represents the total energy (expressed in
feet) of the liquid measured at suction under condi-
tions of incipient cavitation, excluding the vapor pres-
sure (expressed in feet) that the liquid has at the pump
inlet.
To nd the static height (hz) at which to install the
machine under safe conditions, the following formula
must be veried:
hp + hz ≥ (NPSHr + 2 ft) + hf + hpv
where:
hp is the absolute pressure applied to the free liquid
surface in the suction tank, expressed in feet of
liquid; hp is the quotient between the barometric
pressure and the specic weight of the liquid.
hz is the suction lift between the pump axis and the
free liquid surface in the suction tank, expressed in
feet; hz is negative when the liquid level is lower
than the pump axis.
hf is the ow resistance in the suction line and its ac-
cessories, such as: ttings, foot valve, gate valve,
elbows, etc.
hpv is the vapor pressure of the liquid at the operating
temperature, expressed in feet of the liquid. hpv is
the quotient between the Pv vapor pressure and
the liquid‘s specic weight.
0.5 is the safety factor.
The maximum possible suction head for installation
depends on the value of the atmospheric pressure
(i.e. the elevation above sea level at which the pump is
installed) and the temperature of the liquid.
To help the user, with reference to water temperature
(40ºF) and to the elevation above sea level, the follow-
ing tables show the drop in hydraulic pressure head in
relation to the elevation above sea level, and the suc-
tion loss in relation to temperature.
Water Temperature (ºF) 68 104 140 176 194 230 248
Suction Loss (ft) -.7 2.3 6.6 16.4 24.3 50.5 70.5
Elevation Above Sea Level (ft) 1600 3300 4900 6500 8200 9800
Suction Loss (ft) 1.8 3.6 5.4 7.2 9.0 10.8
To reduce it to a minimum, especially in cases of high
suction head (over 13 – 16 feet) or within the operat-
ing limits with high ow rates, we recommend using a
suction line having a larger diameter than that of the
pump’s suction port. It is always a good idea to posi-
tion the pump as close as possible to the liquid to be
pumped.

TECHNICAL DATA – COMPATABILITY CHART FOR MATERIALS IN
CONTACT WITH MOST COMMONLY USED LIQUIDS
Liquid Concentration Temperature Specic SV 1, 3, 5, 10, 15, 22 SV 33, 46, 66, 92 Recommended Elastomers
(%) Min/Max ºF Weight (lb/in3) 304 316 CI/316 316 Seal
Water 100 23/248 • • • • Q1BEGG E
Deionized, demineralized 100 -13/230 • • • • Q1BEGG E
or distilled water
Water and oil emulsion any 23/194 • • • • Q1BVGG V
Acetic acid (•) 80 14/158 .038 • • • • Q1BEGG E
Citric acid 5 14/158 .056 • • • • Q1BEGG E
Hydrochloric acid 2 23/77 .043 • • Q1Q1VGG V
Phosphoric acid 10 23/86 .048 • • Q1BEGG E
Nitric acid (•) 50 23/86 .053 • • • • Q1Q1VGG V
Sulphuric acid (•) 2 14/77 .066 • • Q1BVGG V
Tannic acid 20 32/122 • • Q1BEGG E
Tartaric acid 50 14/77 .063 • • • • Q1Q1VGG V
Uric acid 80 14/176 .068 • • • • Q1BEGG E
Benzoic acid 70 32/158 .047 • • • • Q1BVGG V
Boric acid Saturated 14/194 .052 • • • • Q1Q1VGG V
Formic acid (•) 5 5/77 .044 • • • • Q1BEGG E
Ethyl alcohol (•) 100 23/104 .029 • • • • Q1BEGG E
Methyl alcohol (•) 100 23/104 .029 • • • • Q1BEGG E
Propyl alcohol (•) 100 23/176 .029 • • • • Q1BEGG E
Butyl alcohol 100 23/176 .030 • • • • Q1BVGG V
Denatured alcohol (•) 100 23/158 .030 • • • • Q1BEGG E
Ammonia in water (•) 25 -4/122 .038 • • • • Q1BEGG E
Chloroform 14/86 .053 • • • • Q1BVGG V
Caustic soda 25 32/158 .077 • • • • Q1Q1EGG E
Water, detergents, 23/176 • • • • Q1Q1VGG V
mineral oils mixture
Cleaning products 23/212 • • • • Q1Q1VGG V
Glycerine 100 68/194 .046 • • • • Q1BEGG E
Sodium Hypochlorite 1 14/77 • • Q1Q1VGG V
Phosphates/polyphosphates 23/194 • • Q1Q1VGG V
Sodium nitrate Saturated 14/176 .081 • • • • Q1BEGG E
Cutting uid 100 23/230 .033 • • • • Q1BVGG V
Peanut oil (•) 100 23/230 .034 • • • • Q1BEGG E
Colza oil (•) 100 23/230 .034 • • • • Q1BEGG E
Linseed oil (•) 100 23/230 .034 • • • • Q1BEGG E
Coconut oil (•) 100 -4/194 .033 • • • • Q1BEGG E
Soybean oil (•) 100 32/194 • • • • Q1BEGG E
Diathermic oil 100 23/230 .033 • • • • Q1BVGG V
Hydraulic oil 100 23/230 • • • • Q1BVGG V
Mineral oil 100 23/230 .034 • • • • Q1BVGG V
Sodium sulfate 15 14/104 .094 • • • • Q1Q1EGG E
Aluminum sulfate 30 23/122 .097 • • Q1Q1EGG E
Ammonium sulfate 10 14/140 .064 • • Q1Q1EGG E
Iron sulfate 10 23/86 .076 • • Q1BEGG E
Copper sulfate 20 32/86 .082 • • Q1Q1VGG V
Trichloroethylene 14/104 .053 • • • • Q1BVGG V
Perchlorethylene 14/86 .057 • • • • Q1BVGG V
Legend
Q1 = Silicon carbide B = Impregnated carbon E = EPDM V = Viton G = AISI 316 (spring, metal components)
(•) A special version may be necessary for this uid. For additional information, please contact our sales network.
Goulds is a registered trademark of Goulds Pumps, Inc. and is used under license.
© 2015 Xylem Inc. BeSV60 R6 December 2015
Xylem Inc.
1 Goulds Drive
Auburn, NY 13021
Phone: (866) 325-4210
Fax: (888) 322-5877
www.gouldswatertechnology.com