548269 2 Little Giant Inline 400 Owners Manual
: Pump 548269 2 Little Giant Inline 400 Owners Manual 548269_2_Little Giant Inline 400 Owners Manual pdf
Open the PDF directly: View PDF
.
Page Count: 72

Inline Pressure
Boosting System
Owner's Manual

2
s WARNING
!
s WARNING
!
s CAUTION
!
s CAUTION
!
RISK OF ELECTRIC SHOCK - This pump is supplied with a grounding conductor and grounding type
attachment plug. To reduce risk of electric shock, be certain that it is connected only to a properly
grounded, grounding-type receptacle. Disconnect power before working on or around the Inline system.
Do not use the Inline system in swimming areas.
This equipment should be installed by technically qualied personnel. Failure to install it in compliance
with national and local electrical codes and within Franklin Electric recommendations may result in
electrical shock or re hazard, unsatisfactory performance, or equipment failure. Installation information
is available through pump manufacturers and distributors, or directly from Franklin Electric at our
toll-free number 1-800-348-2420.
This equipment must not be used by children or persons with reduced physical, sensory or mental
abilities, or lacking in experience and expertise, unless supervised or instructed. Children may not
use the equipment, nor may they play with the equipment or in the immediate vicinity.
If the power cord is damaged, it must only be replaced by qualied personnel.
• Keep work area clean, well-lit, and uncluttered.
• Keep safety labels clean and in good condition.
• Wear safety glasses while installing or performing maintenance on pump.
• Do not run pump dry. Fill pump with water before starting or pump will be damaged.
• Make sure all ELECTRICAL POWER IS OFF before connecting any electrical wires. Wire Inline
Pressure Boosting System for correct voltage. Follow all pump wiring instructions provided in
the “Wiring” section of this manual.
This is the safety alert symbol. When you see thiss
!
symbol on your pump or in this manual,
look for one of the following signal words and be alert to the potential for personal injury:
s WARNING
!
DANGER
s WARNING
!
NOTICE
warns about hazards that will cause serious personal injury,
death or major property damage if ignored.
indicates special instructions which are important but not related to hazards.
Carefully read and follow all safety instructions in this manual and on pump.
Before Getting Started
Read and follow safety instructions. Refer to product data plate(s) for additional operating
instructions and specications.
warns about hazards that can cause serious personal injury,
death or major property damage if ignored.
warns about hazards that will or can cause minor personal injury
or major property damage if ignored.
3
Table of Contents
Before Getting Started ................................................................. 2
Specications........................................................................ 4
System Components .................................................................. 5
In the Box ........................................................................... 6
Location of Inline Pressure Boosting System................................................ 7
Installation of the Inline Pressure Boosting System ........................................... 8
Operation of the Inline Pressure Boosting System .......................................... 11
Maintenance of the Inline Pressure Boosting System ........................................ 12
Troubleshooting Guide ................................................................ 16
Frequently Asked Questions ...........................................................17
Appendix 1: Inline 400 Pressure Boosting System Performance Curve .......................... 19
Appendix 2: Friction Loss Tables ........................................................ 20
Limited Warranty .................................................................... 21

4
Inline Pressure Boosting System
Specications
Internal Wiring Diagram
Inline 400 Inline 400
Model No. 92061501/92061503 92061502/92061504
Input from
Power Source
Voltage 115 V 230 V
Phase Single-Phase
Frequency 60 Hz
Current (max) 6.6 Amps (RMS) 3.3 Amps (RMS)
Power (max) 710 W 710 W
Wire Gauge Size(s) 18 Gauge Power Cord 18 Gauge Power Cord
Operating
Conditions
MAX ow (GPM) 20
MAX boost pressure (psi) 55
MAX system pressure (psi) 95
Sound Pressure Level (dB-A) <55
Plumbing Connections 1" NPT
Max Suction Lift (feet) 5
Drain Plug 1/4" NPT
Enclosure Type Acceptable for indoor/outdoor use (with protective cover)/CSA Enclosure Type 3
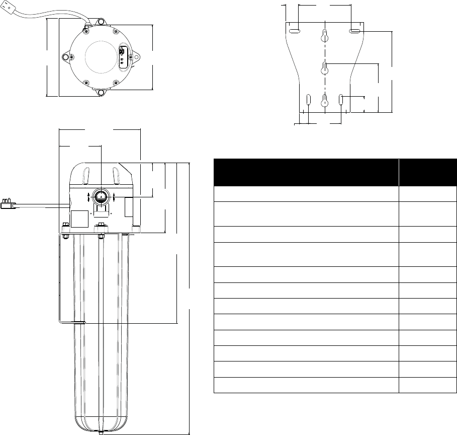
Unit Size External Dimensions 29.6" x 8.5" x 8.9"
Net Weight (lbs) 35
HALL PCB
MOTOR
MAIN PCB ASSEMBLY
CAPACITOR
BLACK WIRE FROM MAIN PCB AND BLACK WIRE
FROM MOTOR MUST BE CONNECTED TO THE
SAME CAPACITOR TERMINAL.
TEMP.
SENSOR
INCOMING
POWER
Black
Green Red
Yellow
Red (230 V)
White (115 V)
UI
PCB
PRESS.
SWITCH
IN
PRESS.
SWITCH
OUT

Inline Pressure Boosting System
5
Introduction
The Inline 400 is a simple to use “plug-and-play” water pressure booster system. At the heart
of this fully integrated booster system is a trusted Franklin Electric submersible pump and
motor. The unit’s control head is equipped with a Hall eect ow sensor, inlet/outlet pressure
switches, thermal overload switch, and a durable printed circuit board. Enhanced performance
allows versatility in residential applications and allows for easy installation (mounting either
vertically or horizontally) while also enabling the system to work with virtually any existing
plumbing conguration.
The Franklin Electric Inline System provides consistent pressure boosting using advanced
electronics to drive and control a standard Franklin Electric pump and motor according to
the pressure boosting demands of the application.
System Components
NOTE: Horizontal installations are approved for INDOOR use only. Vertical installations are
approved for OUTDOOR use when the clear protective cover is installed.
Mounting
Bolts (2)
1/4" NPT Drain Plug
Air-Bleed
Valve
Outlet
Control CapPower Cord
Inlet
Mounting
Base
Pump
Housing
Status Display
Head Cover
Screws (6)

6
Inline Pressure Boosting System
In the Box
A. Inline Pressure Boosting System
B. Installation Manual
All Franklin Electric Inline Pressure Boosting Systems are carefully tested, inspected, and
packaged to ensure their arrival in perfect condition. When the unit is received, examine it
closely to make sure there is no damage that may have occurred in shipping.
If damage is evident, report this immediately to your shipping carrier and product dealer. The
shipping carrier assumes full responsibility for the shipment’s safe arrival. Any claim for damage
to the shipment, either visible or concealed, must be made through the shipping carrier rst.
Status Display
Solid Green
Indicates system is powered and is turned ON, but not currently
running. The green solid light will only be present when no
faults are active.
Flashing Green
Indicates the pump is powered, turned ON, and running.
Solid Red
Indicates the control is powered but currently in the OFF mode.
Pressing the button will toggle the unit into the ON mode.
Flashing Red
Indicates a FAULT has occurred. The unit will automatically attempt to restart. If an immediate
restart is needed, the button can be pressed to force a reset if the fault is no longer present.
If the problem persists, a qualied water professional should be contacted.
Button
The button can be used to turn the unit on or o. When the unit is powered but in the OFF mode
(solid red light), a press of the button will turn the unit ON. If the unit is powered and in the ON
mode (solid green light), a press of the button will shut the unit OFF. The button can also be used
to force a reset after a fault.
Location of Inline Pressure Boosting System
Decide on a location for the pump installation that is suitable based on the enclosure rating of the
Inline Pressure Boosting System. Choose a clean, well-ventilated location that provides protection
from freezing, ooding, and excessive heat. In addition, it should provide access for servicing and
allow convenient draining of the pump housing, tank, and service pipes. A prepared foundation is
not essential, provided the surface is hard and level.

Inline Pressure Boosting System
7
Mechanical Installation
Location:
Decide on an appropriate location for the pump installation that is suitable based on the enclosure
rating of the Inline Pressure Boosting System. Choose a clean, well-ventilated location that
provides protection from freezing, ooding, and excessive heat. In addition, it should provide
access for servicing and allow convenient draining of the pump housing, pressure tank, and
service pipe. (NOTE: Should the unlikely event of internal leakage occur, install the pump in such
a way that no collateral damage can arise.)
Inline 400 Installation Orientation: (refer to Figure 1 if necessary)
It is preferred (for ease of priming) to install the Inline 400 unit in a VERTICAL orientation. The
unit, however, can be installed in the HORIZONTAL position as long as the air-bleed valve is
facing upwards.
In VERTICAL installations, the Inline 400 comes standard with the ow direction being from
LEFT to RIGHT when mounted vertically on a wall. This ow direction can be easily changed to
RIGHT to LEFT by removing the two head mounting bolts, rotating the pump 180 degrees, and
re-installing the head mounting bolts. It is then possible to remove the (6) control cap screws and
rotate 180 degrees to place the status display in a viewable orientation. (NOTE: be careful when
rotating the control cap as there is an electrical cable attached to the head.)
Rotate the entire pump to
change ow direction
Rotate the control cap to
orient status display

8
Inline Pressure Boosting System
Union
Coupling
2 Gallon
Tank
(Discharge into drain
rated for max pump
output at relief pressure)
Pressure
Gauge
Pressure
Gauge
Pressure
Reducing Valve
(optional)
Pressure
Relief
Valve
Union
Coupling
Ball
Valve
Ball
Valve
Inline Pressure
Boosting System
Power
Ball
Valve
Water Supply
5 feet or less
Flow
To House
Pressure
Reducing Valve
(Optional)
*It is recommended (where applicable) to install the Inline 400 pump
in PARALLEL with the incoming water supply. This will allow for a
“service bypass” so that the typical household can still utilize the
incoming water (albeit at a reduced pressure) if maintenance work is
required. This type of installation requires a ball valve be installed as
shown above.
A
F
C
B
D
G
E
Figure 1
Inline 400 Typical Residential Installation:
The Inline Pressure Boosting System is designed to increase a system's usable pressure whenever
water is in use. Shown below is a diagram of the “required” and “recommended” components of a
typical pressure boosting application.
# System Component Description
APressure Tank
A bladder-type pressure tank is required (recommend 2 gallon
size) for proper control of the Inline 400. See “Frequently Asked
Questions” section for more detail. It is important that a check valve
NOT be installed between the pump and the pressure tank.
BINLET Pressure Gauge An INLET pressure gauge is recommended for the purpose of
system set-up, operation, and troubleshooting.
COUTLET Pressure Gauge An OUTLET pressure gauge is recommended for the purpose of
system set-up, operation, and troubleshooting.
DOutlet pressure reducing Valve (PRV)
This Inline 400 will boost a downstream pressure equal to 55 psi +
incoming psi. If the discharge plumbing, xtures, and appliances are
not rated for these higher pressures, it is recommended to install a
PRV after the pressure tank to limit the max downstream pressure.
EInlet pressure reducing Valve (PRV)
This Inline 400 will not function if the incoming water pressure is
greater than 40 psi. If the incoming supply is above 40 psi, a PRV
may be installed on the inlet.
FOutlet Pressure Relief Valve
It is recommended to install a pressure relief valve in the discharge
plumbing in order to protect the downstream components from
abnormal pressure spikes that may occur in certain applications.
Make certain the valves discharge is directed towards a drain
appropriately sized for the max ow of the pump system or
incoming water supply.
GMounting Clearance
For ease of service, it is recommended to leave a clearance of 20
inches below the pump (for housing removal only). This can be
reduced if the unit is installed with the two plumbing unions shown
above. This would make it easy to remove the entire pump from the
system for servicing.
Inline Pressure Boosting System
9
Inline 400 Installation Procedure (Plumbing):
1. Disconnect relevant electrical power at the main breaker.
2. Close all water supply valves necessary to turn o the incoming water supply.
Carefully drain the existing plumbing system of all water.
3. Mount the Inline Pressure Boosting System in the desired location using mounting screws
and mounting holes. The mounting screws are not included with the product. The Inline
Pressure Boosting System may be installed in a horizontal or vertical orientation but must
not be inverted or hung from a horizontal surface.
4. Install inlet and outlet plumbing and pressure tank as shown in Figure 1. The inlet and
outlet of the unit is marked with “INLET” and “OUTLET” respectively. Unions should be
installed on the suction and discharge ends of the pump (use of PTFE thread sealant tape
is recommended over paste, do not overtighten). Internal check valves are provided on
both the suction and the discharge ends of the pump. These valves can help in preventing
backow. If the optional bypass loop is used, a check valve should also be installed
in the bypass (See Fig. 1). Be sure to check all local plumbing codes to ensure that all
requirements pertaining to backow prevention are met.
5. Install a pressure gauge on both the inlet and outlet pipes. These will be required in order to
properly adjust the system as well as aid in system troubleshooting.
6. Install the pressure tank downstream from the pump. The tank should be located within 5'
of the discharge of the pump. There should be no control/check valve between the pressure
tank and the Inline Pressure Boosting System.
7. Install a pressure relief valve downstream of the check valve. The discharge must be
plumbed to a drain rated for maximum pump output at relief pressure settings.
Inline 400 Installation Procedure (Electrical):
1. Employ a licensed electrician to perform the wiring. All wiring must be done in accordance
with applicable national and local electrical codes.
2. Disconnect electrical power at the main breaker.
3. Verify that the dedicated branch circuit for the Inline Pressure Boosting System is equipped
with a 15 amp circuit breaker.
4. Check that the power supply corresponds with the electrical rating of the Inline Pressure
Boosting System being installed. Supply voltage must be +/- 10% of the nameplate voltage.
5. Every installation must be grounded. There must be a reliable ground connection between
the pump and the distribution panel.
6. The Inline Pressure Boosting System comes with all internal connections prewired.
7. Unit should be plugged into an outlet that matches that of the unit purchased.
s WARNING
!
WARNING
The Inline Pressure Boosting System can develop very high pressure in some situations.
Always install a pressure relief valve able to pass full pump ow at 120 psi (6.9 bar).
Install the pressure relief valve near the pressure tank.
It might be necessary to install a pressure reducing valve to limit the potential boost.
Install the pressure reducing valve after the pressure tank.

10
Inline Pressure Boosting System
Plumbing Considerations for Priming Purposes:
The Inline 400 needs to be primed with water before it can function properly. There are two internal
non-return (check) valves built into the head of the unit that need to open during priming. This
requires that the priming water has an incoming pressure of 1.5 psi minimum. This is especially
important if the application involves boosting water out of a shallow cistern. There are two simple
ways to accomplish this in the suction plumbing.
Inline 400 Priming:
Never run the pump dry. Fill the suction pipe, pump housing, and discharge piping completely with
water. A typical installation will be supplied by either a tank or a pressurized water source, creating
what is known as ooded suction condition
With the unit fully plumbed into the system, open the water supply valve and allow pressurized
water to ow through the unit. Place a small bucket under the Inline tank to capture water that is
expelled from the air-bleed during priming. With a small athead screwdriver, slowly open the air
bleed valve (located directly under the outlet) to allow air to exit the internal pump and tank. When
the valve stops sputtering and only a ne stream of water is being expelled, close the air bleed
valve. The unit is now primed and ready for operation.
3’ MIN
ADD WATER FOR PRIMING HERE
SHUT-OFF VALVE
PRIMING TUBE
INLET
OUTLET LINE
OUTLET VALVE
AIR BLEED VALVE (VENT)
GARDEN HOSE FITTING
INLET
OUTLET LINE
OUTLET VALVE
AIR BLEED VALVE (VENT)
PRIMING: 1.5psi can be achieved on the
inlet by pouring water through a 3' vertical
water column. Be sure to keep the inlet
valve closed and open the air-bleed valve
until all air is purged from unit.
PRIMING: Adequate inlet pressure/
ow can be achieved on the inlet by
connecting a garden hose to a tting
on the inlet side of the pump. Be sure
to keep the inlet valve closed, turn on
water supply, and open the air-bleed
valve until all air is purged from unit.
Inline Pressure Boosting System
11
Operating the Inline 400:
All air must be removed from the system. The Inline Pressure Boosting System comes with an air
bleed valve installed to assist with evacuating the air.
1. Close all system outlets then open the air bleed valve.
2. Open any inlet valves to allow water supply to enter the pump. Be prepared for air mixed
with some water to be discharged through the air bleed valve. It may be handy to have a
small bucket to catch the dispersed water.
3. Close air bleed valve once all the air has exited the system (indicated by a small, steady
stream of water coming out of the bleed valve.)
4. Once the air has been evacuated from the system, slightly open a system outlet valve. Start
the pump by pressing the button. This will put the pump into automatic mode.
5. Immediately begin opening a discharge valve to half open. If, after a few minutes of running,
you do not get pressurized water, repeat the priming process as detailed above.
NOTE: If the unit does not prime in 10 seconds, the pump will stop and the RED light will
ash on the display. This is due to an UNDERLOAD error condition in which the pump is
not yet incurring a load indicating water is being pumped. Simply press the start button
again to allow the pump to run for an additional 10 seconds in order to prime. REPEAT
this as necessary.
6. Once the pump is operating, fully open the discharge valve and a system outlet, letting the
pump operate until the water is running clear. No further priming should be needed unless
the pump is drained or there is a leak in the suction plumbing.
NOTE: NEVER OPEN THE BLEED WITH THE PUMP ON as this may allow air to ENTER the
pump rather than expel it from the system.
Effect of System Leaks:
Leaking water systems may cause the Inline Pressure Boosting System to cycle more than
expected. This is due to the unit turning on when the outlet pressure drops below the preset
discharge pressure (factory-set at 40 psi). Continuous running or a high number of starts and
stops will not hurt the controller, pump, or motor. The issue should still be xed, if possible, to
eliminate an increase in power usage of the system.
Adjusting/Fine-Tuning Inline 400 Performance:
When installed properly with an external pressure tank (2-gallon size recommended), it is possible
to adjust the pump CUT-IN pressure of the Inline 400 unit.
The Inline 400 pump is factory-set to start boosting (turn pump ON) when the discharge pressure
drops below 40 psi. In certain applications, it may be desirable to adjust this setting to be higher
or lower. See the example below:
In this example, a home is supplied with pressurized water from the local municipality that
uctuates between 30 psi MAX and 25 psi MIN. As stated earlier, the Inline 400 will add 55 psi to
the incoming water pressure.
MAX Total Downstream Pressure is 30 psi + 55 psi = 85 psi
MIN Total Downstream Pressure is 25 psi + 55 psi = 80 psi
s WARNING
!
WARNING Disconnect power to the unit before attempting to remove the
control cap and adjust the discharge pressure switch.

12
Inline Pressure Boosting System
This condition will result in a pressure drop from 80 or 85 psi down to 40 psi before the pump
initially turns ON (this DROP is due to the stored water being discharged from the pressure tank). If
the installer desires to change this from a 80 psi-40 psi drop to a 80psi-50psi drop, the discharge
pressure switch can be adjusted to turn the pump ON when the discharge pressure reaches 50
psi. Follow these steps:
1. Disconnect the unit from incoming power.
2. Remove the (6) control cap screws and remove the cap (NOTE: be careful when removing
the control cap as there is an electrical cable attached to the head.)
3. Using a 7/32" hex wrench, turn the internal discharge pressure switch screw clockwise one-
full turn. This should raise the switch cuto by 10-12 psi.
4. Replace the control cap and re-install (6) screws.
5. Adjust pressure tank to 48 psi (always 2 psi lower than cut-in pressure)
NOTE: NEVER adjust the discharge pressure switch to a setting HIGHER than the SUM of
your minimum incoming pressure + 40 psi as doing so may result in a fault (ashing RED).
Maintenance of the Inline 400:
Draining the System:
Disconnecting the pump will not necessarily drain all other parts of the piping system.
If there are any concerns with the proper procedure or necessity of draining the suction plumbing,
contact a water systems professional. All Inline systems, piping, and water tanks exposed to
freezing weather should be drained when appropriate. There is a drain plug on the bottom of the
unit that may be used to drain the disabled system. If there are any concerns with the proper
procedure to drain the system’s pressure tank, contact the tank manufacturer for assistance.
s WARNING
!
WARNING Disconnect power to the unit before attempting to perform these
maintenance functions. All maintenance functions should be
performed by a qualied service professional.
Discharge
Pressure Switch
OUTLETINLET

Inline Pressure Boosting System
13
Cleaning the Flow Switch:
In some cases the ow switch may become clogged with mineral deposits or plugged with debris.
In those cases the switch may be cleaned by the following steps:
1. Disconnect the unit from incoming power.
2. The system may be under pressure. As such, close both the inlet and outlet valves
and drain all pressurized water from the system prior to performing maintenance on
the ow switch.
3. Remove the (6) control cap screws and remove the cap (NOTE: be careful when removing
the control cap as there is an electrical cable attached to the head.)
4. Remove the three Phillips screws that hold the ow cap in place.
5. Remove the ow control cap. The O-ring may come o with the cap or may remain in the
head. Remove the O-ring and make sure it is free of debris. Place it back on the bottom of
the ow cap.
6. Use a small metal object, such as a screwdriver or nut driver, to retrieve the magnetic ow
control piston from the cavity. (It is magnetic and will stick to the metal object)
7. Clean the magnetic ow control piston with a cloth.
8. Clean any debris or residue from the head where the piston is inserted.
9. Replace the Piston into the head. Press the ow cap w/O-ring rmly into the head.
Tighten the (3) screws to 15 inch-lbs torque (do not overtighten)
10. Replace the control cap and tighten (6) screws to 15 inch-lbs torque.
11. Re-calibrate control head (See page 14)
Flow Cap,
Screws,
O-ring
Piston
Control Head
Flow Cap
Screws

14
Inline Pressure Boosting System
Re-calibration of Control Head:
There are times, especially after servicing, that the Inline 400 needs to be re-calibrated. This
is necessary in order to re-establish a reference point for the indication of ow. Follow these
procedures for Field Flow Calibration:
1. Before powering the unit on, verify there is no water owing in the system. This will ensure
that the ow piston is in the fully seated (zero ow) position.
2. While holding down the push button on the status display, plug the unit's power cord into
the receptacle (or switch on breaker if hard-wired). Continue holding down the button for ve
seconds until both the green and red LEDs blink, indicating calibration is complete. Release
the button and the red LED should come on solid, indicating calibration was successful.
3. Open valves/taps to begin water ow and conrm unit is operating properly.
Outline Dimensions for Inline 400:
[225]
8,86
[135]
5,31
[45]
1,77
[35]
1,38
[146]
5,75
[90]
3,54
[25]
0,98
[180]
7,09
[216]
8,50
[117]
4,61
[225]
8,86
[95]
3,74
[194]
7,64
[444]
17,48
[752]
29,61
Model Description Order No.
Pump Housing Wrench 305572001
Inlet or Outlet Pressure Switch
(40 psi) 305572007
Replacement Pump Housing 305572009
Replacement control cap w/
display 305572010
Replacement Mounting Base 305572011
Motor Capacitor - 115 V (w/boot) 305572012
Motor Capacitor - 230 V (w/boot) 305572013
Power Cord - 115 V 305572014
Power Cord - 230 V 305572015
Flow Piston Kit 305572016
Pump Housing O-ring 305572017
Outdoor Protective Cap Kit 305572018

Inline Pressure Boosting System
15
Inline 400 Protective Weather Cover
For outdoor vertical installations of the Inline 400, the enclosed protective weather cover should
be used for maximum protection of the unit. It is not recommended that the Inline 400 be installed
horizontally for outdoor applications where the unit would be directly subjected to inclement
weather. Failure to use this protective cover in outdoor installations will void the warranty of the
Inline 400 unit.
The installation of the enclosed protective weather cover is simple. After the Inline 400 unit
has been installed, simply attach the protective cover over the top of the unit using the
reclosable fastener.
The clear protective cover allows viewing of the operation lights of the unit, but does not allow
access to the user interface button. In order to press the user interface button, the cover must be
removed. After the required button activation is completed, the protective weather cover must be
reassembled to the unit.
1) Vertically Mounted Inline 400
2) Protective Weather Cover
3) Reclosable Fastener
1
2
3

16
Inline Pressure Boosting System
Inline 400 Troubleshooting Guide
Condition Indicator Lights Possible Cause Corrective Action
Unit will not turn
on - No GREEN
or RED LED
illuminated on
control cap
None Circuit breaker tripped or turned o Turn on the circuit breaker
None Circuit breaker tripped or turned o Consult a licensed electrician to
properly wire outlet
Unit runs briey,
won't develop
pressure, then
turns o
Flashing Green (10s) then ashing RED Insucient water Check water supply and valving
Flashing Green (10s) then ashing RED Unit insuciently primed Refer to owner’s manual section on
proper priming technique
Flashing Green (10s) then ashing RED Dry running Check water supply and valving
Unit won't start
with water
demand
Solid Green Inlet water pressure above 40psi Install a pressure reducing valve on inlet
to reduce inlet pressure
Unit continuously
cycles ON/OFF
(Rapid Cycle)
Flashing Green Improper charge pressure in tank Set the pressure in pressure tank to
2 psi lower than cut-in pressure
Flashing Green Check valve between tank and unit Place check valve after pressure tank
Unit won't turn on
Solid RED Unit is turned OFF Press the power button on the user
interface
Flashing RED Overvoltage (input voltage higher than
+10%)
Check the supply voltage and correct
if possible
Flashing RED Undervoltage (input voltage lower than
-10%)
Check the supply voltage and correct
if possible
Flashing RED Overheating due to excessive water
temperature Supply cold water to the pump
Flashing RED Pump is in alarm condition Reset pump by pressing power button
Unit runs
or cycles
continuously
Flashing Green Leak/usage above 1/2gpm in system
plumbing Repair the leaking plumbing
Flashing Green Internal non-return valve is blocked/
damaged
Place a new non-return valve before unit
in INLET plumbing
Flashing Green Internal ow piston is stuck open Clean the ow piston (see page 14)
NOTE: The motor in this unit contains thermal protection that responds to motor current and heat from the motor winding and ambient
temperature. When the combination of current and heat exceeds a pre-determined point, the protector opens and interrupts the circuit.
When the winding temperature returns to a more normal level, the protector will automatically reset.
Inline Pressure Boosting System
17
Frequently Asked Questions
What causes the Inline to start boosting?
The Inline is equipped with a ow sensor and dual pressure switches. It will turn on when the:
• Discharge pressure drops below 40 psi or
• Discharge pressure becomes equal to the inlet pressure
This starting logic allows for the pressure tank to fully discharge before turning the Inline system
unit ON. This will minimize power consumption and increase product life by accommodating small
intermittent water usage or leakage.
What causes the Inline System to stop boosting?
The Inline system stops boosting when the demand for water drops below the ½ gallon-per-
minute ow rate (pump will turn o around 15 seconds after the ow stops). The unit can also be
manually shut down during normal operation by pressing the button on the cap of the unit.
What internal system protection does the Inline offer?
The Inline system monitors several dierent functions in order to protect the unit should any of the
following conditions occur during normal operation:
• Over Voltage (+10% of rated)
• Under Voltage (-10% of rated)
• Dry Run (i.e. motor is running but no pressure is being developed)
• Overheat (greater than 120 °F internal water temperature)
These are also Inline 400 faults which are indicated by a red blinking light on the control cap.
What is the purpose of the pressure tank?
The pressure tank serves two purposes:
1. It allows for small volumes of water to be used without starting the Inline.
2. It adds a pressure buer to the system in order to absorb undesired pressure spikes
or uctuations.
It is recommended that the tank be charged to 38 psi when installed.
What is the maximum inlet pressure?
The maximum internal pressure rating of the Inline is 100 psi. Therefore, the maximum inlet
pressure when added to the maximum Inline pump pressure (see performance chart) must not
exceed 100 psi. The Inline unit incorporates an internal pressure switch that will not allow the unit
to turn ON if the inlet pressure exceeds 40 psi either before or during desired operation.
Example: If you wish to use this booster in an application with 45 psi incoming, it is recommended
to install a pressure reducing Valve (PRV) on the inlet side of the unit. The PRV would be used to
maintain a constant pressure below the cut-in pressure and could be used to limit the maximum
pressure created.
18
Inline Pressure Boosting System
What is the maximum output pressure?
The Inline will maintain a “NO-FLOW” system pressure equal to the incoming pressure (psi) plus
the shut-o pressure from the pump operating curve. For example, if the input pressure is 38 psi,
at shut o the system will boost an additional 55 psi. This means ALL plumbing downstream of the
Inline would be subject to maintaining 93 psi (38 + 55). If this high pressure is undesirable due to
the condition and/or conguration of the existing plumbing or appliances, installing a PRV on the
discharge of the Inline is recommended to limit the maximum distributed pressure.
What is the maximum operating temperature of the Inline?
The Inline is equipped with two temperature sensors. One is installed integral to the motor to
protect the motor windings. The other is installed in the control head and senses the internal
temperature of the water. In both cases, the unit will fault at a max temp of 120 °F and turn back
on when the temperature drops below 95 °F.
Do I have to install the Inline vertically?
The Inline can be installed horizontally as long as the discharge port is directed upwards. This
orientation places the air bleed valve in the upward position, allowing it to function properly
during the initial priming of the pump.
How do I prime the Inline system?
The Inline will need to be properly primed before initial operation (before unit is plugged in).
Because there are two spring-loaded check valves integrated into the Inline head, a small amount
(1.5 psi) of positive water pressure is needed to open these valves and properly prime the unit.
With the unit fully plumbed into the system, open the water supply valve and allow pressurized
water to ow through the unit. You will probably want to place a small bucket under the Inline tank
to capture water that is expelled from the unit during priming. With a small athead screwdriver,
slowly open the air bleed valve (located directly under the outlet) to allow air to exit the internal
pump and tank. When the valve stops sputtering and only a ne stream of water is being expelled,
close the air bleed valve. The unit is now primed and ready for operation.
Notice: Do not open the air bleed valve when the pump is running.
Can the Inline system be used in suction-lift applications?
It is not recommended to use the Inline in suction lift applications greater than ve feet lift. A
secondary pressurized water source (i.e. hose from municipality or 3' riser pipe) may be required
in order to provide adequate pressurized priming as described above.

Inline Pressure Boosting System
19
Appendix 1: Inline Pressure Boosting System Performance Curve (60 Hz)
60 140
120
100
80
60
40
20
0
0
0 10 20 30 40 50 60 70 80 90
0 1 2 3 4 5
5 10 20 2515
50
40
40
30
20
10
0
30
20
10
0
mpsi
gpm
lpm
m3/h
ft

20
Inline Pressure Boosting System
Appendix 2: Friction Loss Tables
Flow
GPM
Velocity
Ft / S
Friction Loss
Ft Hd / 100' Velocity
Ft / S
Fric. Loss
Ft Hd / 100'
Steel
(C = 100)
PVC
(C = 140)
Copper
(C = 130)
2 1.20 1.93 1.03 1.33 1.50
3 1.80 4.09 2.19 1.99 3.18
4 2.41 6.96 3.73 2.65 5.42
5 3.01 10.53 5.64 3.31 8.20
6 3.61 14.75 7.91 3.98 11.49
7 4.21 19.63 10.53 4.64 15.29
8 4.81 25.13 13.48 5.30 19.57
9 5.41 31.26 16.76 5.97 24.35
10 6.02 38.00 20.38 6.63 29.59
Flow
GPM
Velocity
Ft / S
Friction Loss
Ft Hd / 100' Velocity
Ft / S
Fric. Loss
Ft Hd / 100'
Steel
(C = 100)
PVC
(C = 140)
Copper
(C = 130)
4 0.86 0.57 0.30 1.02 0.53
6 1.29 1.20 0.64 1.53 1.13
8 1.72 2.04 1.10 2.04 1.92
10 2.15 3.09 1.66 2.55 2.90
12 2.57 4.33 2.32 3.06 4.07
14 3.00 5.76 3.09 3.57 5.41
16 3.43 7.38 3.96 4.08 6.93
18 3.86 9.18 4.92 4.59 8.62
20 4.29 11.16 5.98 5.11 10.48
25 5.36 16.87 9.05 6.38 15.85
Flow
GPM
Velocity
Ft / S
Friction Loss
Ft Hd / 100' Velocity
Ft / S
Fric. Loss
Ft Hd / 100'
Steel
(C = 100)
PVC
(C = 140)
Copper
(C = 130)
2 0.74 0.60 0.32 0.78 0.41
4 1.48 2.15 1.15 1.56 1.48
6 2.23 4.56 2.44 2.33 3.14
8 2.97 7.76 4.16 3.11 5.35
10 3.71 11.74 6.29 3.89 8.08
12 4.45 16.45 8.82 4.67 11.33
14 5.20 21.89 11.74 5.44 15.07
16 5.94 28.03 15.03 6.22 19.30
18 6.68 34.86 18.70 7.00 24.00
¾" Pipe
NOTE: Charts show friction loss per 100' of pipe. To convert to friction loss per foot, move decimal point two places to the left.
1¼" Pipe
1" Pipe
21
STANDARD LIMITED WARRANTY
Except as set forth in an Extended Warranty, for twelve (12) months from the date of installation, but in no event more
than twenty-four (24) months from the date of manufacture, Franklin hereby warrants to the purchaser (“Purchaser”)
of Franklin’s products that, for the applicable warranty period, the products purchased will (i) be free from defects in
workmanship and material at the time of shipment, (ii) perform consistently with samples previously supplied and (iii)
conform to the specications published or agreed to in writing between the purchaser and Franklin. This limited warranty
extends only to products purchased directly from Franklin. If a product is purchased other than from a distributor or
directly from Franklin, such product must be installed by a Franklin Certied Installer for this limited warranty to apply.
This limited warranty is not assignable or transferable to any subsequent purchaser or user.
a. THIS LIMITED WARRANTY IS IN LIEU OF ALL OTHER WARRANTIES, WRITTEN OR ORAL, STATUTORY, EXPRESS,
OR IMPLIED, INCLUDING ANY WARRANTY OF MERCHANTABILITY OR FITNESS FOR A PARTICULAR PURPOSE.
PURCHASER’S SOLE AND EXCLUSIVE REMEDY
FOR FRANKLIN’S BREACH OF ITS OBLIGATIONS HEREUNDER, INCLUDING BREACH OF ANY EXPRESS OR
IMPLIED WARRANTY OR OTHERWISE, UNLESS PROVIDED ON THE FACE HEREOF OR IN A WRITTEN INSTRUMENT
MADE PART OF THIS LIMITED WARRANTY, SHALL BE FOR THE PURCHASE PRICE PAID TO FRANKLIN FOR THE
NONCONFORMING OR DEFECTIVE PRODUCT OR FOR THE REPAIR OR REPLACEMENT OF NONCONFORMING OR
DEFECTIVE PRODUCT, AT FRANKLIN’S ELECTION. ANY FRANKLIN PRODUCT WHICH FRANKLIN DETERMINES TO
BE DEFECTIVE WITHIN THE WARRANTY PERIOD SHALL BE, AT FRANKLIN’S SOLE OPTION, REPAIRED, REPLACED,
OR A REFUND OF THE PURCHASE PRICE PAID. Some states do not allow limitations on how long an implied warranty
lasts, therefore, the limitations and exclusions relating to the products may not apply.
b. WITHOUT LIMITING THE GENERALITY OF THE EXCLUSIONS OF THIS LIMITED WARRANTY, FRANKLIN SHALL
NOT BE LIABLE TO THE PURCHASER OR ANY THIRD PARTY FOR ANY AND ALL (i) INCIDENTAL EXPENSES
OR OTHER CHARGES, COSTS, EXPENSES (INCLUDING COSTS OF INSPECTION, TESTING, STORAGE, OR
TRANSPORTATION) OR (ii) DAMAGES, INCLUDING CONSEQUENTIAL, SPECIAL DAMAGES, PUNITIVE OR INDIRECT
DAMAGES, INCLUDING, WITHOUT LIMITATION, LOST PROFITS, LOST TIME AND LOST BUSINESS OPPORTUNITIES,
REGARDLESS OF WHETHER FRANKLIN IS OR IS SHOWN TO BE AT FAULT, AND REGARDLESS OF WHETHER
THERE IS OR THERE IS SHOWN TO HAVE BEEN A DEFECT IN MATERIALS OR WORKMANSHIP, NEGLIGENCE IN
MANUFACTURE OR DESIGN, OR A FAILURE TO WARN.
c. Franklin’s liability arising out of the sale or delivery of its products, or their use, whether based upon warranty
contract, negligence, or otherwise, shall not in any case exceed the cost of repair or replacement of the product and,
upon expiration of any applicable warranty period, any and all such liability shall terminate.
d. Without limiting the generality of the exclusions of this limited warranty, Franklin does not warrant the adequacy of
any specications provided directly or indirectly by a purchaser or that Franklin’s products will perform in accordance
with such specications. This limited warranty does not apply to any products that have been subject to misuse
(including use in a manner inconsistent with the design of the product), abuse, neglect, accident or improper installation
or maintenance, or to products that have been altered or repaired by any person or entity other than Franklin or its
authorized representatives.
e. Unless otherwise specied in an Extended Warranty authorized by Franklin for a specic product or product line, this
limited warranty does not apply to performance caused by abrasive materials, corrosion due to aggressive conditions or
improper voltage supply.
f. With respect to motors and pumps, the following conditions automatically void this limited warranty:
1. Mud or sand deposits which indicate that the motor has been submerged in mud or sand.
2. Physical damage as evidenced by bent shaft, broken or chipped castings, or broken or bent thrust parts.
3. Sand damage as indicated by abrasive wear of motor seals or splines.
4. Lightning damage (often referred to as high voltage surge damage).
5. Electrical failures due to the use of non-approved overload protection.
6. Unauthorized disassembly.
22
Notes
23
Notes

Form 106935101
Rev. 4
08.16
9255 Coverdale Road, Fort Wayne, IN 46809
Tel: 260.824.2900 Fax: 260.824.2909
www.franklinwater.com

Sistema de
presurización Inline
Manual del usuario

ii
s ADVERTENCIA
!
s ADVERTENCIA
!
s PRECAUCIÓN
!
s PRECAUCIÓN
!
RIESGO DE DESCARGA ELÉCTRICA - Esta bomba viene equipada con un conductor a tierra y un
enchufe del tipo con conexión a tierra. Para reducir el riesgo de descarga eléctrica, asegúrese que se
conecte solo a un receptáculo del tipo con conexión a tierra que esté conectado apropiadamente a
tierra. Desconecte la alimentación antes de trabajar en el sistema Inline o cerca de él. No use el sistema
Inline en áreas donde se practique natación.
Este equipo debe ser instalado por personal técnicamente calicado. El incumplimiento de las
regulaciones locales y nacionales, así como de las recomendaciones de Franklin Electric, puede
resultar en descargas eléctricas, riesgo de incendio, desempeño insatisfactorio o fallas en el equipo.
Puede obtener la información para la instalación de los fabricantes o distribuidores de la bomba, o
llamando directamente a Franklin Electric a nuestra línea gratuita, 1-800-348-2420.
Los niños o personas con habilidades físicas, sensoriales o mentales reducidas o sin experiencia, no
deben usar este equipo a menos que estén supervisados o se les den instrucciones. Los niños no
deben usar el equipo y no deben jugar con el equipo o en sus cercanías.
Si el cable de alimentación está dañado, solo debe ser reemplazado por personal calicado.
• Mantenga limpia, bien iluminada y despejada el área de trabajo.
• Mantenga las etiquetas de seguridad limpias y en buenas condiciones.
• Use gafas de seguridad mientras está instalando o dando mantenimiento a la bomba.
• No opere la bomba en seco. Llene la bomba con agua antes de arrancarla o se dañará la bomba.
• Asegúrese de que toda la ALIMENTACIÓN ELÉCTRICA ESTÁ APAGADA antes de conectar cualquier
cable eléctrico. Cablear el Sistema de presurización Inline al voltaje correcto. Siga todas las
instrucciones de cableado de la bomba que se proporcionan en la sección “Cableado” de
este manual.
Este es un símbolo de alerta de seguridad. Cuando vea este símbolo s
!
en su bomba o en este
manual, busque alguna de las siguientes palabras de señalización y esté alerta a la posibilidad de
lesiones personales:
s
!
PELIGRO
s
!
AVISO
Este símbolo advierte sobre peligros que ocasionarán lesiones personales
graves, muerte o daños mayores a la propiedad si son ignorados.
Este símbolo advierte sobre peligros que pueden ocasionar
lesiones personales graves, muerte o daños mayores a la propiedad si son ignorados.
Este símbolo advierte sobre peligros que ocasionarán o podrán
ocasionar lesiones personales menores o daños mayores a la propiedad si son ignorados.
indica instrucciones especiales que son importantes pero no están relacionadas a
los peligros. Lea cuidadosamente y cumpla todas las instrucciones de seguridad en este manual y en
la bomba.
Antes de empezar
Lea y siga las instrucciones de seguridad. Vea las placas de datos del producto para obtener
instrucciones de operación y especicaciones adicionales.
3
Índice
Antes de empezar ................................................................2
Especicaciones .................................................................4
Componentes del sistema ..........................................................5
En la caja .......................................................................6
Ubicación del sistema de presurización Inline...........................................7
Instalación del sistema de presurización Inline ..........................................8
Funcionamiento del sistema de presurización Inline .....................................11
Mantenimiento del sistema de presurización Inline ......................................12
Guía de solución de problemas . . . . . . . . . . . . . . . . . . . . . . . . . . . . . . . . . . . . . . . . . . . . . . . . . . . . . 16
Preguntas frecuentes .............................................................17
Apéndice 1: Curva de desempeño del sistema de presurización Inline 400 ...................19
Apéndice 2: Tablas de pérdida por fricción ............................................20
Garantía limitada ................................................................21

4
Sistema de presurización Inline
Especicaciones
Diagrama de cableado interno
Inline 400 Inline 400
No. de modelo 92061501/ 92061503 92061502/ 92061504
Entrada de
alimentación
eléctrica
Voltaje 115 V 230 V
Fase Monofásico
Frecuencia 60 Hz
Corriente (máxima) 6.6 Amperes (RMS) 3.3 Amperes (RMS)
Potencia (máxima) 710 W 710 W
Calibre(s) del cable Cable de alimentación calibre 18 Cable de alimentación calibre 18
Condiciones
de operación
Flujo máximo (GPM) 20
Presurización máxima (psi) 55
Presión máxima del sistema (psi) 95
Nivel de presión sonora (dB-A) <55
Conexiones de tubería 1" NPT
Elevación de succión máxima (pies) 5
Tapón de drenado 1/4" NPT
Tipo de
gabinete Aceptable para uso en el interior/exterior (con cubierta de protección) / Gabinete CSA 3
Tamaño de
la unidad
Dimensiones externas 29.6" x 8.5" x 8.9"
Peso neto (lb) 35
PCB de
HALL
MOTOR
CONJUNTO DE LA PCB PRINCIPAL
CONDENSADOR
EL CABLE NEGRO DE LA PCB PRINCIPAL Y
EL CABLE NEGRO DEL MOTOR DEBEN ESTAR
CONECTADOS AL MISMO TERMINAL DEL
CONDENSADOR.
SENSOR
DE
TEMP.
ALIMENTACIÓN
DE ENTRADA
Negro
Verde Rojo
Amarillo
Rojo (230 V)
Blanco (115 V)
PCB
de UI
INTERRUPTOR
DE PRESIÓN
DE ENTRADA
INTERRUPTOR
DE PRESIÓN
DE SALIDA

Sistema de presurización Inline
5
Introducción
El Inline 400 es un sistema de presurización de agua de uso fácil (enchufar y usar). En el corazón
de este sistema de presurización totalmente integrado hay una bomba y un motor sumergible
de Franklin Electric. La cabeza de control de la unidad está equipada con un sensor de ujo de
efecto Hall, interruptores de presión de entrada/salida, interruptor de sobrecarga térmica y una
resistente tarjeta de circuitos impresos. Un desempeño mejorado permite la versatilidad en las
aplicaciones residenciales y permite la fácil instalación (montaje vertical u horizontal) a la vez que
también deja funcionar al sistema con virtualmente cualquier conguración de tubería existente.
El sistema Inline de Franklin Electric proporciona una presurización constante usando una
electrónica avanzada para accionar y controlar una bomba y un motor estándar de Franklin
Electric de acuerdo a las demandas de aumento de presión de la aplicación.
Componentes del sistema
NOTA: Las instalaciones horizontales se utilizan solo para uso en el INTERIOR Las
instalaciones VERTICALES se utilizan solo para uso en el EXTERIOR cuando se haya
instalado la cubierta de protección.
Pernos de
montaje (2)
Tapón de drenaje de 1/4" NPT
Válvula de
purga de aire
Salida
Tapa de controlCable de
alimentación
Suministro
Base de
montaje
Carcasa de
la bomba
Pantalla de estado
Tornillos de
la tapa de
la cabeza (6)

6
Sistema de presurización Inline
En la caja
A. Sistema de presurización Inline
B. Manual de instalación
Todos los Sistemas de presurización Inline Franklin Electric son cuidadosamente probados,
inspeccionados y empacados para asegurar que lleguen en condición perfecta. Cuando reciba la
unidad, examínela de cerca para asegurarse que no ocurrieron daños durante el envío.
Si hay daños evidentes, reporte esto inmediatamente a su proveedor de reparto y al concesionario
del producto. El proveedor de reparto asume responsabilidad completa por la llegada del envío
con seguridad. Cualquier reclamo por daños al envío, ya sean visibles o encubiertos, debe hacerse
primero a través del proveedor de reparto.
Pantalla de estado
Luz verde ja
Indica que el sistema tiene alimentación eléctrica y está ENCENDIDO,
pero no está en operación. La luz verde ja solo estará encendida si
no hay fallas activas.
Verde intermitente
Indica que la bomba tiene alimentación eléctrica, está ENCENDIDA y
en operación.
Luz roja ja
Indica que el control tiene alimentación eléctrica pero está actualmente
en el modo APAGADO. Presionar el botón cambiará la unidad al modo
de ENCENDIDO.
Luz roja intermitente
Indica que ha ocurrido una FALLA. La unidad intentará reiniciarse automáticamente. Si es
necesario un reinicio inmediato, se puede presionar el botón para forzar un reinicio si la falla ya no
está presente. Si persiste el problema, se debe contactar a un profesional calicado.
Botón
El botón puede usarse para encender o apagar la unidad. Cuando la unidad tiene alimentación
eléctrica pero está en el modo de APAGADO (luz roja ja), presionar este botón hará que se
encienda la unidad. Si la unidad tiene alimentación eléctrica y está en el modo de ENCENDIDO
(luz verde ja), presionar este botón hará que se apague la unidad. El botón también puede usarse
para forzar un reinicio después de una falla.
Ubicación del Sistema de presurización Inline
Seleccione una ubicación para la instalación de la bomba que sea adecuada con base en la
clasicación del gabinete del Sistema de presurización Inline. Elija una ubicación limpia, bien
ventilada que proporciona protección contra la congelación, inundación y calor excesivo.
Adicionalmente, debe tener acceso para darle servicio y permitir un drenaje conveniente de la
carcasa de la bomba, el tanque y las tuberías de servicio. No es esencial que haya una base
preparada, siempre que la supercie sea dura y nivelada.

Sistema de presurización Inline
7
Instalación mecánica
Ubicación:
Seleccione una ubicación para la instalación de la bomba que sea adecuada con base en la
clasicación del gabinete para uso en del Sistema de presurización Inline. Elija una ubicación
limpia, bien ventilada que proporciona protección contra la congelación, inundación y calor
excesivo. Adicionalmente, debe tener acceso para darle servicio y permitir un drenaje conveniente
de la carcasa de la bomba, el tanque de presión y la tubería de servicio. (NOTA: Instale la bomba
de tal manera que no pueda surgir daño colateral si ocurriera el
muy poco probable caso de fuga interna).
Orientación para la instalación del Inline 400 (vea la Figura 1 si es necesario)
Es preferible (para facilitar la ceba) instalar la unidad Inline 400 en una orientación VERTICAL.
La unidad, sin embargo, se puede instalar en la posición HORIZONTAL siempre que la válvula
de salida de aire esté apuntando hacia arriba.
En las instalaciones VERTICALES, el Inline 400 viene de manera estándar con la dirección del ujo
de IZQUIERDA a DERECHA cuando se monta verticalmente en una pared. Esta dirección de ujo
se puede cambiar fácilmente de DERECHA a IZQUIERDA quitando los dos pernos de montaje
de la cabeza, rotando la bomba 180 grados y volviendo a instalar los pernos de montaje de la
cabeza. Entonces es posible quitar los (6) tornillos de la tapa de control y rotar 180 grados para
colocar la pantalla de estado en una orientación visible. (NOTA: tenga cuidado al rotar la tapa de
control ya que hay un cable eléctrico conectado a la cabeza).
Rote la bomba completa para
cambiar la dirección del ujo
Rote la tapa de control para
orientar la pantalla de estado

8
Sistema de presurización Inline
Acoplamiento
de unión
Tanque de
2 galones
(Descarga al drenaje apta para
la salida máx. de la bomba a
la presión de descarga)
Medidor
de presión
Medidor
de presión
Válvula de
reducción de
presión
(opcional)
Válvula de
alivio de
presión
Acoplamiento
de unión
Válvula
de bola
Válvula
de bola
Sistema de
presurización
Inline
Alimentación
Válvula
de bola
Suministro de agua
5 pies o menos
Flujo
A la casa
Válvula de
reducción
de presión
(opcional)
-
A
F
C
B
D
G
E
*Se recomienda (cuando corresponda) instalar la bomba Inline 400 en
PARALELO con el suministro entrante de agua. Esto permitirá tener una
“derivación para servicio” para que el hogar promedio pueda todavía
utilizar el agua entrante (a una presión reducida) si se requiere trabajo
de mantenimiento. Este tipo de instalación requiere que se instale una válvu-
la de bola como se muestra arriba.
Figura 1
Instalación residencial típica del Inline 400:
El Sistema de presurización Inline está diseñado para incrementar la presión de uso de un sistema
siempre que se utilice el agua. Abajo se muestra un diagrama de los componentes “requeridos” y
“recomendados” de una aplicación de presurización típica.
# Componentes del sistema Descripción
ATanque de presión
Se requiere un tanque de presión tipo vejiga (se recomienda un tamaño de 2
galones) para el control apropiado del Inline 400. Vea la sección de “Preguntas
frecuentes” para obtener más detalles. Es importante que NO se instale una
válvula de retención entre la bomba y el tanque de presión.
BMedidor de presión de ENTRADA Se recomienda un medidor de presión de ENTRADA a efectos de la
conguración, funcionamiento y solución de problemas del sistema.
CMedidor de presión de SALIDA Se recomienda un medidor de presión de SALIDA a efectos de la
conguración, funcionamiento y solución de problemas del sistema.
DVálvula de reducción de
presión de salida (PRV)
Este Inline 400 aumentará a una presión de salida igual a 55 psi + psi de
entrada. Si la tubería de descarga, instalaciones y dispositivos no están
clasicados para estas presiones altas, se recomienda instalar una válvula de
reducción de presión después del tanque de presión para limitar la presión
máxima de salida.
EVálvula de reducción de
presión de entrada (PRV)
Este Inline 400 no funcionará si la presión del agua de entrada es mayor que
40 psi. Si el suministro de entrada está por encima de 40 psi, se debe instalar
en la entrada una válvula de reducción de presión.
FVálvula de alivio de presión de salida
Se recomienda instalar una válvula de alivio de presión en la tubería de
descarga para proteger los componentes de variaciones anormales de presión
que puedan ocurrir en ciertas aplicaciones. Asegúrese que la descarga de las
válvulas se dirija hacia una drenaje de tamaño apropiado para el ujo máximo
del sistema de bombeo o suministro de agua de entrada.
GEspacio libre para el montaje
Para facilitar el servicio, se recomienda dejar un espacio libre de 20 pulgadas
abajo de la bomba (solo para quitar la carcasa). Esto puede reducirse si la
unidad está instalada con las dos uniones de tubería que se muestran arriba.
Esto haría fácil extraer la bomba completa del sistema para darle servicio.
Sistema de presurización Inline
9
Procedimiento de instalación del Inline 400 (tubería):
1. Desconecte el suministro eléctrico relevante en el interruptor principal.
2. Cierre todas las válvulas de suministro de agua necesarias para cerrar la entrada de agua.
Cuidadosamente drene toda el agua de la tubería del sistema.
3. Monte el Sistema de presurización Inline en la ubicación deseada usando los tornillos
de montaje y los oricios de montaje. Los tornillos de montaje no están incluidos en el
producto. El Sistema de presurización Inline se puede instalar en una orientación horizontal
o vertical pero no debe invertirse o colgarse de una supercie horizontal.
4. Instale la tubería de entrada y salida y el tanque de presión como se muestra en la
Figura 1. La entrada y la salida de la unidad están marcadas con “INLET” y “OUTLET”
respectivamente. Las uniones deben instalarse en los extremos de succión y descarga (se
recomienda el uso de la cinta para sellar roscas PTFE por encima de la pasta, no apretar
de más). Se proporcionan válvulas de retención internas en los extremos de succión y
descarga de la bomba. Estas válvulas pueden ayudar a evitar el reujo. Si se usa el circuito
de derivación opcional, también se debe instalar una válvula de retención en la derivación
(Ver Figura 1). Asegúrese de revisar todos los códigos locales de plomería para asegurar
que se cumplan todos los requerimientos locales para evitar el reujo.
5. Instale un medidor de presión en la tubería de entrada y en la de salida. Estos serán
necesarios para ajustar apropiadamente el sistema así como ayudar en la solución de
problemas del sistema.
6. Instale el tanque de presión después de la bomba. El tanque debe estar ubicado en
un rango de 5 pies de la descarga de la bomba. No debe haber una válvula de control/
retención entre el tanque de presión y el sistema de presurización Inline.
7. Instale una válvula de alivio después de la válvula de retención. La descarga debe estar
conectada a un drenaje calicado para la salida máxima de la bomba a las especicaciones
de alivio de presión
Procedimiento de instalación del Inline 400 (eléctrico):
1. Contrate a un electricista con licencia para realizar el cableado. Todo el cableado debe
hacerse de acuerdo con los códigos eléctricos aplicables nacionales y locales.
2. Desconecte el suministro eléctrico en el interruptor principal.
3. Verique que el circuito derivado dedicado al Sistema de presurización Inline esté equipado
con un disyuntor de 15 amp.
4. Verique que el suministro de alimentación eléctrica corresponda a la calicación eléctrica
del Sistema de presurización Inline que se va a instalar. El voltaje de suministro debe estar
a +/- 10% del voltaje indicado en la placa.
5. Cada instalación debe estar conectada a tierra. Debe haber una conexión a tierra conable
entre la bomba y el panel de distribución.
6. El Sistema de presurización Inline viene con todas las conexiones internas precableadas.
7. La unidad debe conectarse a un tomacorriente que corresponda con el de la
unidad comprada.
s ¡ADVERTENCIA
!
ADVERTENCIA
El Sistema de presurización Inline puede desarrollar una presión muy alta en algunas
situaciones.
Siempre instale una válvula de alivio para pasar el ujo completo de la bomba a 120 psi
(6.9 bar). Instale la válvula de alivio cerca del tanque de presión.
Puede ser necesario instalar una válvula de reducción de presión para limitar el incremento
potencial. Instale la válvula de reducción después del tanque de presión.

10
Sistema de presurización Inline
Consideraciones de la tubería para propósito del cebado:
El Inline 400 necesita cebarse con agua antes de que pueda funcionar apropiadamente. Hay dos
válvulas de retención (check) internas construidas en la cabeza de la unidad que necesitan abrirse
durante el cebado. Esto requiere que el agua cebada tenga una presión mínima de entrada de
1.5 psi. Esto es especialmente importante si la aplicación involucra la presurización del agua
que sale de una cisterna poco profunda. Hay dos maneras simples de completar esto en la
tubería de succión.
Cebado del Inline 400:
Nunca opere la bomba en seco. Llene la tubería de succión, la carcasa de la bomba y la tubería
de descarga completamente con agua. Una instalación típica recibirá el suministro ya sea de un
tanque o una fuente de agua presurizada, creando lo que se conoce como condición de succión
inundada.
Con la unidad completamente conectada en el sistema, abra la válvula de suministro de agua y
permita que el agua presurizada uya a través de la unidad. Coloque una cubeta pequeña bajo
el tanque del Inline para capturar el agua que se expulsa de la salida de aire al cebar. Con un
destornillador de cabeza plana pequeño, abra lentamente la válvula de salida de aire (localizada
directamente debajo de la salida) para permitir que salga el aire de la bomba interna y el tanque.
Cuando la válvula deje de barbotear y expulse solamente un chorro no de agua, cierre la válvula
de salida de aire. La unidad ahora está cebada y lista para la operación.
3 PIES MIN
AGREGAR AGUA AQUÍ PARA CEBAR
VÁLVULA DE CIERRE
TUBO DE CEBADO
SUMINISTRO
LÍNEA DE SALIDA
VÁLVULA DE SALIDA
VÁLVULA DE SALIDA DE AIRE
Conexión de manguera de jardín
SUMINISTRO
LÍNEA DE SALIDA
VÁLVULA DE SALIDA
VÁLVULA DE SALIDA DE AIRE
CEBADO: Se puede alcanzar 1.5 psi en
la entrada vaciando agua a través de
una columna de agua vertical de 3 pies.
Asegúrese de mantener cerrada la válvula
de entrada y abierta la válvula de salida
de aire hasta que todo el aire se purgue
de la unidad.
CEBADO: Se puede alcanzar una presión/
ujo de entrada adecuado en la entrada
conectando una manguera de jardín a
una conexión en el lado de la bomba.
Asegúrese de mantener cerrada la válvula
de entrada, abrir el suministro de agua, y
abrir la válvula de salida de aire hasta que
todo el aire sea purgado de la unidad.
Sistema de presurización Inline
11
Operación del Inline 400:
Todo el aire debe eliminarse del sistema. El Sistema de presurización Inline viene preinstalado con
una válvula de salida para ayudar a evacuar el aire.
1. Cierre todas las salidas del sistema y luego abra la válvula de salida del aire.
2. Abra cualquier válvula de entrada para permitir que el suministro de agua entre a la bomba.
Esté preparado para la descarga de una mezcla de aire con algo de agua a través de la
válvula de salida. Puede ser útil tener una pequeña cubeta para recoger el agua dispersada.
3. Cierre la válvula de salida de aire una vez que el aire ha salido del sistema (indicado por un
chorro de agua pequeño y estable que sale de la válvula de salida).
4. Una vez que se ha evacuado el aire del sistema, abra ligeramente una válvula de
salida del sistema. Arranque la bomba presionando el botón. Esto pondrá la bomba
en modo automático.
5. Inmediatamente comience a abrir la válvula de descarga hasta la mitad. Si después de unos
minutos de operación no obtiene agua presurizada, repita el proceso de cebado como se
detalla arriba.
NOTA: Si la unidad no se ceba en 10 segundos, la bomba se detendrá y la luz ROJA
comenzará a parpadear en la pantalla. Esto se debe a una condición de error de BAJA
CARGA en la cual la bomba no está incurriendo en una carga indicando que el agua sea
bombeada. Simplemente presione el botón de arranque de nuevo para dejar que la bomba
funcione por 10 segundos adicionales para que se cebe. REPITA si es necesario.
6. Una vez que la bomba está operando, abra completamente la válvula de descarga y una
salida del sistema, dejando que la bomba funcione hasta que el agua esté corriendo limpia.
No se necesitará cebar nuevamente a menos que se drene la bomba o haya una fuga en la
tubería de succión.
NOTA: NUNCA ABRA LA SALIDA CON LA BOMBA FUNCIONANDO ya que esto puede permitir
que ENTRE aire a la bomba en vez de sacarlo del sistema.
Efecto de las fugas del sistema:
Los sistemas con fugas pueden ocasionar que el Sistema de presurización Inline tenga un ciclo
de trabajo mayor de lo esperado. Esto es debido a que la unidad se enciende cuando la presión
de salida disminuye por debajo de la presión de descarga preestablecida (congurada de fábrica
a 40 psi) La operación continua o un número mayor de arranques y paradas no dañarán al
controlador, la bomba o el motor. No obstante, el problema se debe arreglar si es posible, para
eliminar un incremento en el uso de alimentación eléctrica del sistema.
Ajuste/anación na del desempeño del Inline 400:
Cuando se instala apropiadamente con un tanque de presión externa (tamaño recomendado
de 2 galones), es posible ajustar la presión de CONEXIÓN de la unidad Inline 400.
La bomba Inline 400 está congurada de fábrica para comenzar a presurizar (ENCENDER la
bomba) cuando la presión de descarga cae por debajo de 40 psi. En ciertas aplicaciones, puede
ser deseable ajustar este parámetro a un valor más alto o más bajo. Ver el ejemplo abajo.
En este ejemplo, se suministra una casa con agua presurizada de la municipalidad local que
uctúa entre 30 psi máximo y 25 psi mínimo. Como se dijo antes, el Inline 400 agregará 55 psi a la
presión del agua de entrada.
La presión de salida máxima total es 30 psi + 55 psi = 85 psi
La presión de salida mínima total es 25 psi + 55 psi = 80 psi
s ¡ADVERTENCIA
!
ADVERTENCIA Desconecte la alimentación de la unidad antes de
intentar quitar la tapa de control y ajustar el interruptor
de presión de descarga.

12
Sistema de presurización Inline
Interruptor de
presión de descarga
SALIDAENTRADA
Esta condición dará como resultado una caída de presión desde 80 u 85 psi hasta 40 psi
antes de que la bomba inicialmente se ENCIENDA (esta CAÍDA se debe a que el agua
almacenada se descarga del tanque de presión). Si el instalador desea cambiar la caída
de 80 psi a 40 psi a una caída de 80 psi a 50 psi, se puede ajustar el interruptor de presión
de descarga para encender la bomba cuando la presión de descarga llegue a 50 psi. Siga
estos pasos:
1. Desconecte la unidad de la alimentación de entrada.
2. Extraiga los (6) tornillos de la tapa de control y quite la tapa (NOTA: tenga cuidado al
quitar la tapa de control ya que hay un cable eléctrico conectado a la cabeza).
3. Usando una llave hexagonal de 7/32", gire el tornillo del interruptor de presión de
descarga interna una vuelta completa en sentido de las manecillas del reloj. Esto debe
elevar el corte del interruptor de 10 a 12 psi.
4. Coloque de nuevo la tapa de control y vuelva a instalar los (6) tornillos.
5. Ajuste la presión del tanque a 48 psi (siempre 2 psi más baja que la presión de corte)
NOTA: NUNCA ajuste el interruptor de presión de descarga a un valor MAYOR que la
SUMA de su presión mínima de entrada + 40 psi porque si lo hace puede resultar en una
falla (luz ROJA intermitente).
Mantenimiento del Inline 400:
Drenaje del sistema:
Desconectar la bomba no necesariamente drenará todas las otras partes del sistema de
tuberías. Si hay alguna preocupación con el procedimiento apropiado o la necesidad de
drenar la tubería de succión, póngase en contacto con un profesional de sistemas hidráulicos.
Cuando sea apropiado, deben drenarse todos los sistemas Inline, las tuberías y los tanques
de agua expuestos a temperaturas de congelación. Hay un tapón de drenaje en la parte baja
de la unidad que se puede usar para drenar el sistema inhabilitado. Si tiene dudas acerca del
procedimiento apropiado para drenar el tanque de presión del sistema, póngase en contacto
con el fabricante del tanque para que le proporcione orientación técnica.
s ¡ADVERTENCIA
!
ADVERTENCIA Desconecte la alimentación de la unidad antes de intentar
llevar a cabo estas funciones de mantenimiento. Un
profesional de servicio calicado debe ejecutar todas las
funciones de mantenimiento.

Sistema de presurización Inline
13
Limpieza del interruptor de ujo:
En algunos casos el interruptor de ujo se puede obstruir con depósitos minerales
o bloquear con basuras. En esos casos el interruptor se puede limpiar con los
siguientes pasos:
1. Desconecte la unidad de la alimentación de entrada.
2. El sistema puede estar bajo presión. Como tal, cierre tanto la válvula de entrada como la
de salida y drene toda el agua presurizada del sistema antes de dar mantenimiento en el
interruptor de ujo.
3. Extraiga los (6) tornillos de la tapa de control y quite la tapa (NOTA: tenga cuidado al quitar
la tapa de control ya que hay un cable eléctrico conectado a la cabeza).
4. Extraiga los tres tornillos Phillips que mantienen la tapa de ujo en su lugar.
5. Quite la tapa de control de ujo. La junta tórica puede salir con la tapa o puede quedarse
en la cabeza. Quite la junta tórica y asegúrese que no tiene basuras. Colóquela nuevamente
en la parte inferior de la tapa de ujo.
6. Use un objeto pequeño de metal, como un destornillador o llave para tuercas, para
recuperar el pistón de control de ujo magnético de la cavidad (es magnético y se adherirá
al objeto de metal).
7. Limpie con un trapo el pistón de control de ujo magnético.
8. Limpie las basuras o residuos de la cabeza donde se inserta el pistón.
9. Reemplace el pistón en la cabeza. Presione rmemente la tapa de ujo con la junta tórica
en la cabeza. Apriete los (3) tornillos a una torsión de 15 pulgadas-lb (no apriete de más).
10. Coloque de nuevo la tapa de control y apriete los (6) tornillos a una torsión de
15 pulgadas-lb.
11. Recalibrar la cabeza de control (ver la página 14).
Tapón de flujo,
tornillos,
junta tórica
Pistón
Cabeza de
control
Tapón de flujo
Tornillos

14
Sistema de presurización Inline
Re-calibración de la cabeza de control:
Hay veces, especialmente después del servicio, que el Inline 400 necesita recalibrarse. Esto es
necesario para poder restablecer un punto de referencia para la indicación de ujo. Siga estos
procedimientos para la calibración de ujo en el campo:
1. Antes de pasar la alimentación eléctrica a la unidad, verique que no haya ujo de agua
en el sistema. Esto asegurará que el pistón de ujo esté en en la posición completamente
asentado (cero ujo).
2. Mientras mantiene presionado el botón en la pantalla de estado, conecte el cable de
alimentación de la unidad al receptáculo (o encienda el interruptor si está cableado directo).
Continúe presionando al botón cinco segundos hasta que los indicadores LED verde y rojo
parpadeen ambos, indicando que nalizó la calibración. Libere el botón y el indicador LED
rojo debe quedar iluminado jo, indicando que la calibración fue exitosa.
3. Abra las válvulas/grifos para comenzar el ujo del agua y conrmar que la unidad está
funcionando apropiadamente.
Esquema de dimensiones del Inline 400:
[225]
8.86
[135]
5.31
[45]
1.77
[35]
1.38
[146]
5.75
[90]
3.54
[25]
0.98
[180]
7.09
[216]
8.50
[117]
4.61
[225]
8.86
[95]
3.74
[194]
7.64
[444]
17.48
[752]
29.61
Descripción del modelo No. de
pedido
Llave para la carcasa de la bomba 305572001
Interruptor de presión (40 psi)
de entrada o salida 305572007
Carcasa de de recambio de la bomba 305572009
Tapa de control de recambio con pantalla 305572010
Base de montaje de recambio 305572011
Capacitor del motor - 115 V
(con tapa de goma) 305572012
Condensador del motor - 230 V
(con tapa de goma) 305572013
Cable de alimentación - 115 V 305572014
Cable de alimentación - 230 V 305572015
Kit del pistón de ujo 305572016
Junta tórica de la carcasa de la bomba 305572017
Kit tapa protectora exterior 305572018

Sistema de presurización Inline
15
Cubierta de protección contra el clima Inline 400
Para instalaciones verticales en el exterior de Inline 400, la cubierta de protección
contra el clima del gabinete debe utilizarse para máxima protección de la unidad. Se
recomienda no instalar horizontalmente el Inline 400 para aplicaciones en el exterior si
la unidad estará en contacto directo con las inclemencias del clima. Si la cubierta de
protección no se utiliza como corresponde en instalaciones en el exterior, se invalida la
garantía de la unidad Inline 400.
La instalación de la cubierta de protección contra el clima del gabinete es simple.
Luego de que la unidad Inline 400 haya sido instalada, simplemente je la cubierta de
protección por encima de la unidad con sujetador recerrable. La cubierta de protección
transparente permite ver el funcionamiento de las luces de la unidad pero no permite
el acceso al botón de la interfaz del usuario. Para presionar el botón de interfaz del
usuario se debe quitar la cubierta. Una vez completada la activación requerida del
botón, la cubierta de protección contra el clima se debe volver a colocar en la unidad.
1) Inline 400 montado verticalmente
2) Cubierta de protección contra el clima
3) Sujetador recerrable
1
2
3

16
Sistema de presurización Inline
Guía de solución de problemas para Inline 400
Condición Luces indicadoras Causa posible Acción correctiva
La unidad no
encienda - No están
iluminados los LED
VERDE o ROJO en la
tapa de control
Ninguna Disyuntor disparado o apagado Encienda el disyuntor
Ninguna Disyuntor disparado o apagado
Consulte a un electricista con
licencia para cablear la conexión
apropiadamente
La unidad enciende
brevemente, no
desarrolla presión,
luego se apaga
Verde intermitente (10 s)
luego ROJO intermitente Insuciente agua Revise el suministro de agua
y las válvulas
Verde intermitente (10 s)
luego ROJO intermitente Cebado de la unidad insuciente
Consulte la sección de técnicas
apropiadas de cebado en el manual
del propietario
Verde intermitente (10 s)
luego ROJO intermitente Operación en seco Revise el suministro de agua
y las válvulas
La unidad no arranca
con la demanda de
agua
Luz verde ja Presión de entrada del agua por encima
de 40 psi
Instale una válvula reductora de presión
en la entrada para reducir la presión
de entrada
La unidad realiza
continuamente el
ciclo ENCENDIDO/
APAGADO (ciclo
rápido)
Verde intermitente Presión de carga inapropiada en el
tanque
Establecer la presión en el tanque de
presión a 2 psi más baja que la presión
de corte
Verde intermitente Revise la válvula entre el tanque
y la unidad
Coloque la válvula de retención después
del tanque de presión
La unidad no
enciende
Luz ROJA ja La unidad está APAGADA Presione el botón de encendido en la
interfase del usuario
Luz ROJA intermitente Sobrevoltaje (voltaje de entrada mayor
de +10%)
Revise el suministro de voltaje y corríjalo
si es posible
Luz ROJA intermitente Bajo voltaje (voltaje de entrada menor
de -10%)
Revise el suministro de voltaje y corríjalo
si es posible
Luz ROJA intermitente Sobrecalentamiento debido a
temperatura excesiva del agua Suministre agua fría a la bomba
Luz ROJA intermitente La bomba está en condición de alarma Reinicie la bomba presionando el botón
de encendido
La unidad opera o se
cicla continuamente
Verde intermitente Fuga/uso por encima de 1/2 gpm en la
tubería del sistema Repare la fuga en la tubería
Verde intermitente La válvula de retención está
bloqueada/dañada
Coloque una nueva válvula de retención
antes de la unidad en la tubería de
ENTRADA
Verde intermitente El pistón de ujo interno se
quedó abierto
Limpie el pistón de ujo
(ver la página 14)
NOTA: El motor en esta unidad contiene una protección térmica que responde a la corriente del motor y al calor del devanado
del motor y la temperatura ambiente. Cuando la combinación de corriente y calor excede un punto predeterminado, el protector
se abre e interrumpe el circuito. Cuando la temperatura del devanado regresa a un nivel más normal, el protector automáticamente
se restablecerá.
Sistema de presurización Inline
17
Preguntas frecuentes
¿Qué ocasiona que el Inline comience a presurizar?
El Inline está equipado con un sensor de ujo e interruptores de presión duales.
Se encenderá cuando:
• La presión de descarga caiga por debajo de 40 psi o
• La presión de descarga sea igual a la presión de entrada
Esta lógica de arranque permite al tanque de presión descargarse completamente antes de
ENCENDER la unidad del sistema Inline. Esto minimizará el consumo de energía e incrementará
la vida del producto al adaptarse al poco uso intermitente o fuga del agua.
¿Qué ocasiona que el Inline deje de presurizar?
El sistema Inline deja de presurizar cuando la demanda de agua cae por debajo de una velocidad
de ujo de ½ galón por minuto (la bomba se apagará unos 15 segundos después de que pare
el ujo). La unidad también se puede ser apagar manualmente durante la operación normal
presionando el botón en la tapa de la unidad.
¿Qué protección interna del sistema ofrece el Inline?
El Inline monitorea varias funciones diferentes para poder proteger la unidad si ocurre alguna de
las siguientes condiciones durante la operación normal:
• Sobrevoltaje (+10% del nominal)
• Bajo voltage (-10% del nominal)
• Operación en seco (por ejemplo, el motor está funcionando pero no desarrolla presión)
• Sobrecalentamiento (temperatura interna del agua mayor que 120 °F)
Estas son fallas del Inline 400 que también se indican por una luz roja intermitente en la tapa
de control.
¿Cuál es el propósito del tanque de presión?
El tanque de presión sirve para dos propósitos.
1. Permite que se usen volúmenes pequeños de agua sin arrancar el Inline.
2. Agrega un amortiguador de presión al sistema para poder absorber los picos o
uctuaciones de presión no deseados.
Se recomienda que se cargue el tanque a 38 psi cuando se instale.
¿Cuál es la presión máxima de entrada?
La presión interna máxima nominal del Inline es 100 psi. Por lo tanto, la presión máxima de
entrada cuando se agrega a la máxima presión de la bomba Inline (ver la tabla de desempeño)
no debe exceder 100 psi. La unidad Inline incorpora un interruptor de presión interna que no
permitirá que la unidad se ENCIENDA si la presión de entrada excede 40 psi ya sea antes o
durante la operación deseada. Ejemplo: Si desea usar este sistema de presurización en una
aplicación con una entrada de 45 psi, se recomienda instalar una válvula reductora de presión
(PRV) en el lado de entrada de la unidad. La válvula de reducción de presión se usará para
mantener una presión constante por debajo de la presión de corte y podría usarse para limitar
la presión máxima creada.
18
Sistema de presurización Inline
¿Cuál es la presión máxima de salida?
El Inline mantendrá una presión del sistema de “NO FLUJO” igual a la presión de entrada (psi)
más la presión de apagado de la curva de funcionamiento de la bomba. Por ejemplo, si la presión
de entrada es 38 psi, al apagar el sistema presurizará 55 psi adicionales. Esto signica que la
TODA la tubería después del Inline estaría sujeta a mantener 93 psi (38 + 55). Si esta presión alta
es indeseable debido a la condición y/o conguración de la tubería o instalaciones existentes, se
recomienda instalar una válvula de reducción de presión en la descarga del Inline para limitar la
presión máxima distribuida.
¿Cuál es la temperatura de funcionamiento máxima del Inline?
El Inline está equipado con dos sensores de temperatura. Uno está instalado incorporado al motor
para proteger el devanado del motor. El otro está instalado en la cabeza de control y es sensible a
la temperatura interna del agua. En ambos casos, la unidad fallará a una temperatura máxima de
120 °F y se encenderá de nuevo cuando la temperatura baje a 95 °F.
¿Necesito instalar el Inline verticalmente?
El Inline puede instalarse horizontalmente siempre que el puerto de descarga esté dirigido hacia
arriba. Esta orientación coloca la válvula de salida de aire en la posición hacia arriba permitiendo
que funcione apropiadamente durante el cebado inicial de la bomba.
¿Cómo cebo el sistema Inline?
El Inline necesitará cebarse apropiadamente antes de la operación inicial (antes de que se
conecte). Como hay dos válvulas de retención de resorte integradas a la cabeza del Inline, se
necesita una cantidad pequeña de presión positiva (1.5 psi) de agua para abrir estas válvulas y
cebar apropiadamente la unidad.
Con la unidad completamente conectada en el sistema, abra la válvula de suministro de agua y
permita que el agua presurizada uya a través de la unidad. Probablemente deba colocar una
cubeta pequeña bajo el tanque del Inline para capturar el agua que se expulse de la salida de aire
al cebar. Con un destornillador de cabeza plana pequeño, abra lentamente la válvula de salida de
aire (localizada directamente bajo la salida) para permitir que salga el aire de la bomba interna y el
tanque. Cuando la válvula deje de barbotear y expulse solamente un chorro no de agua, cierre la
válvula de salida de aire. La unidad ahora está cebada y lista para la operación.
NOTA: No abra la válvula de salida de aire cuando la bomba esté en funcionamiento.
¿Puede usarse el sistema Inline en aplicaciones de levantamiento
por succión?
No se recomienda usar el Inline en aplicaciones de levantamiento por succión a más de cinco
pies de elevación. Puede requerirse una fuente secundaria de agua presurizada (por ejemplo una
manguera municipal o tubería ascendente de 3 pies) para proveer la ceba presurizada adecuada
como se describe arriba.

Sistema de presurización Inline
19
Apéndice 1: Curva de desempeño del sistema de presurización Inline (60 Hz)
60 140
120
100
80
60
40
20
0
0
0 10 20 30 40 50 60 70 80 90
0 1 2 3 4 5
5 10 20 2515
50
40
40
30
20
10
0
30
20
10
0
mpsi
gpm
lpm
m3/h
pies

20
Sistema de presurización Inline
Apéndice 2: Tablas de pérdida por fricción
Flujo
GPM
Velocidad
Pies / s
Pérdida por fricción
Pies de carga hidráulica / 100 pies Velocidad
Pies / s
Pérdida por fricción
Pies de carga hidráulica / 100 pies
Acero
(C = 100)
PVC
(C = 140)
Cobre
(C = 130)
2 1.20 1.93 1.03 1.33 1.50
3 1.80 4.09 2.19 1.99 3.18
4 2.41 6.96 3.73 2.65 5.42
5 3.01 10.53 5.64 3.31 8.20
6 3.61 14.75 7.91 3.98 11.49
7 4.21 19.63 10.53 4.64 15.29
8 4.81 25.13 13.48 5.30 19.57
9 5.41 31.26 16.76 5.97 24.35
10 6.02 38.00 20.38 6.63 29.59
Flujo
GPM
Velocidad
Pies / s
Pérdida por fricción
Pies de carga hidráulica / 100 pies Velocidad
Pies / s
Pérdida por fricción
Pies de carga hidráulica / 100 pies
Acero
(C = 100)
PVC
(C = 140)
Cobre
(C = 130)
4 0.86 0.57 0.30 1.02 0.53
6 1.29 1.20 0.64 1.53 1.13
8 1.72 2.04 1.10 2.04 1.92
10 2.15 3.09 1.66 2.55 2.90
12 2.57 4.33 2.32 3.06 4.07
14 3.00 5.76 3.09 3.57 5.41
16 3.43 7.38 3.96 4.08 6.93
18 3.86 9.18 4.92 4.59 8.62
20 4.29 11.16 5.98 5.11 10.48
25 5.36 16.87 9.05 6.38 15.85
Flujo
GPM
Velocidad
Pies / s
Pérdida por fricción
Pies de carga hidráulica / 100 pies Velocidad
Pies / s
Pérdida por fricción
Pies de carga hidráulica / 100 pies
Acero
(C = 100)
PVC
(C = 140)
Cobre
(C = 130)
2 0.74 0.60 0.32 0.78 0.41
4 1.48 2.15 1.15 1.56 1.48
6 2.23 4.56 2.44 2.33 3.14
8 2.97 7.76 4.16 3.11 5.35
10 3.71 11.74 6.29 3.89 8.08
12 4.45 16.45 8.82 4.67 11.33
14 5.20 21.89 11.74 5.44 15.07
16 5.94 28.03 15.03 6.22 19.30
18 6.68 34.86 18.70 7.00 24.00
Tubería de ¾"
NOTA: Las tablas muestran las pérdidas por fricción por 100 pies de tubería. Para convertir a pérdidas por fricción por pie,
mueva el punto decimal dos lugares a la izquierda.
Tubería de 1¼"
Tubería de 1"
21
GARANTÍA ESTÁNDAR LIMITADA
Excepto con lo expuesto en la Garantía Ampliada, por doce (12) meses a partir de la fecha de instalación, pero bajo ninguna
circunstancia por más de veinticuatro (24) meses a partir de la fecha de fabricación, por medio del presente Franklin garantiza
al comprador (“Comprador”) de los productos Franklin que, durante el periodo de tiempo correspondiente de la garantía, los
productos comprados estarán (i) libres de defectos en mano de obra y materiales al momento del envío, (ii) se desempeñan de
manera consistente con las muestras previamente proporcionadas, y (iii) están en conformidad con las especicaciones publicadas o
acordadas por escrito entre el comprador y Franklin. Esta garantía limitada se aplica solamente a productos comprados directamente
de Franklin. Si un producto se compró de alguien que no sea un distribuidor o directamente de Franklin, dicho producto debe
instalarse por un Instalador Certicado de Franklin para que esta garantía limitada sea aplicable. Esta garantía limitada no es asignable
o transferible a ningún comprador o usuario posterior.
a. ESTA GARANTÍA LIMITADA ESTÁ EN LUGAR DE TODAS LAS OTRAS GARANTÍAS, ESCRITAS U ORALES, LEGALES, IMPLÍCITAS
O EXPLÍCITAS, INCLUYENDO CUALQUIER GARANTÍA DE COMERCIABILIDAD O IDONEIDAD PARA UN PROPÓSITO EN
PARTICULAR. EL ÚNICO Y EXCLUSIVO DESAGRAVIO DEL COMPRADOR ANTE EL INCUMPLIMIENTO DE FRANKLIN DE SUS
OBLIGACIONES EN EL PRESENTE, INCLUYENDO EL INCUMPLIMIENTO DE CUALQUIER GARANTÍA IMPLÍCITA O EXPLÍCITA
O DE OTRA FORMA, A MENOS QUE SE INDIQUE EN EL ANVERSO DEL PRESENTE O POR ESCRITO INCORPORADO A ESTA
GARANTÍA LIMITADA, DEBERÁ SER POR EL PRECIO PAGADO POR EL COMPRADOR A FRANKLIN POR EL PRODUCTO QUE
NO ESTÁ EN CONFORMIDAD O ESTÁ DEFECTUOSO O POR LA REPARACIÓN O REEMPLAZO DEL PRODUCTO QUE NO ESTÁ
EN CONFORMIDAD O ESTÁ DEFECTUOSO, A ELECCIÓN DE FRANKLIN. CUALQUIER PRODUCTO FRANKLIN QUE FRANKLIN
DETERMINE QUE ESTÁ DEFECTUOSO DENTRO DEL PERÍODO DE GARANTÍA DEBERÁ, A DISCRECIÓN DE FRANKLIN, SER
REPARADO, REEMPLAZADO, O REEMBOLSADO POR EL PRECIO PAGADO DE COMPRA. Algunos estados no permiten limitaciones
sobre la duración de la garantía implícita, por lo tanto, podrían no aplicarse las limitaciones y exclusiones relacionadas a los productos.
b. SIN LIMITAR LA GENERALIDAD DE LAS EXCLUSIONES DE ESTA GARANTÍA LIMITADA, FRANKLIN NO DEBERÁ SER
RESPONSABLE ANTE EL COMPRADOR O ANTE TERCERAS PARTES POR TODOS Y CADA UNO DE (i) GASTOS INCIDENTALES
U OTROS CARGOS, COSTOS, GASTOS (INCLUYENDO COSTOS DE INSPECCIÓN, PRUEBAS, ALMACENAJE O TRANSPORTE)
O (ii) DAÑOS, INCLUYENDO CONSECUENCIALES, DAÑOS ESPECIALES, DAÑOS PUNITIVOS O INDIRECTOS, INCLUYENDO EN
CARÁCTER ENUNCIATIVO Y NO LIMITATIVO, PÉRDIDA DE GANANCIAS, PÉRDIDA DE TIEMPO Y PÉRDIDA DE OPORTUNIDADES
COMERCIALES, SIN IMPORTAR SI FRANKLIN ES O SE DEMUESTRA QUE TIENE LA CULPA, Y SIN IMPORTAR SI EXISTE O SE HA
MOSTRADO QUE HA HABIDO UN DEFECTO EN LOS MATERIALES O MANO DE OBRA, NEGLIGENCIA EN LA FABRICACIÓN O
DISEÑO, O UNA OMISIÓN DE ADVERTENCIA.
c. La responsabilidad de Franklin derivada de la venta o entrega de sus productos, o su uso, ya sea con base en contrato de garantía,
negligencia u otro, no deberá en ningún caso exceder el costo de la reparación o reemplazo del producto y, al vencimiento de cualquier
plazo aplicable de la garantía, cualquier y toda responsabilidad deberá nalizar.
d. Sin limitarse a la generalidad de las exclusiones de esta garantía limitada, Franklin no garantiza la idoneidad de cualquier
especicación proporcionada directa o indirectamente por un comprador o que los productos Franklin tendrán un rendimiento de
acuerdo con dichas especicaciones. Esta garantía limitada no se aplica a ningún producto que haya estado sujeto a uso indebido
(incluyendo el uso en una forma inconsistente con el diseño del producto), abuso, negligencia, accidente o instalación o mantenimiento
inadecuados, o a productos que hayan sido alterados o reparados por cualquier persona o entidad diferente a Franklin o sus
representantes autorizados.
e. A menos que se indique lo contrario en una Garantía Ampliada autorizada por Franklin para un producto o línea de producto
especíco, esta garantía limitada no se aplica al desempeño ocasionado por materiales abrasivos, corrosión debido a condiciones
agresivas o suministro inadecuado de voltaje.
f. En relación con los motores y bombas, las siguientes condiciones anulan automáticamente esta garantía limitada.
1. Depósito de lodo o arena que indiquen que el motor se ha sumergido en lodo o arena.
2. Daño físico evidenciado por un eje doblado, piezas fundidas rotas o astilladas, o piezas de impulsión rotas o dobladas.
3. Daño por arena como lo indica un desgaste abrasivo de los sellos o estrías del motor.
4. Daño por relámpagos (comúnmente conocido como daños por picos de alto voltaje).
5. Fallas eléctricas debido al uso de protección de sobrecarga no aprobada.
6. Desmontaje no autorizado.
El usuario puede hacer válida la garantía directamente con el representante donde fue adquirido el producto. Para poder acceder a
componentes, consumibles y accesorios, el usuario puede acudir directamente con el representante donde fue adquirido el producto.
Para compras en México, puede contactar al importador Motores Franklin S.A. de C.V. En cualquier caso, deberá presentar el producto
acompañado de la factura de compra o la presente póliza de garantía.
Importador: Motores Franklin S.A. de C.V.
Av. Churubusco 1600 B16
CP 64560 MÉXICO
Tel. 81 8000 1000
22
Notas
23
Notas

Form 106935101
Rev. 4
08.16
9255 Coverdale Road, Fort Wayne, IN 46809
Tel: 260.824.2900 Fax: 260.824.2909
www.franklinwater.com

Système de
surpression Inline
Manual du propriétaire

s AVERTISSEMENT
!
s AVERTISSEMENT
!
s PRUDENCE
!
s PRUDENCE
!
RISQUE DE DÉCHARGE ÉLECTRIQUE – Cette pompe est fournie avec un conducteur de mise à la
terre et une che munie d’une attache de mise à la terre. Pour réduire le risque de décharge électrique,
assurez-vous de seulement brancher la pompe à une prise électrique correctement mise à la terre.
Débranchez l’alimentation avant de travailler sur ou autour du système Inline. N’utilisez pas le système
Inline dans les zones de baignade.
Cet équipement doit être installé par une personne qualiée du point de vue technique. Une
installation ne respectant pas les codes de l’électricité nationaux et locaux et les recommandations de
Franklin Electric peut entraîner une décharge électrique, un incendie, un rendement insatisfaisant ou
une défaillance de l’appareil. De l’information sur l’installation est disponible auprès des fabricants et
des distributeurs de pompes, ou directement auprès de Franklin Electric au moyen de notre numéro
sans frais, 1-800-348-2420.
Cet équipement ne doit pas être utilisé par des enfants ou des personnes ayant des capacités
physiques, sensorielles ou mentales réduites, ou qui manquent d’expérience ou d’expertise, à moins
d’être supervisés ou dirigés. Des enfants ne doivent pas utiliser l’équipement ou jouer avec celui-ci ou
dans son entourage immédiat.
Si le cordon d’alimentation est endommagé, il doit être remplacé uniquement par une
personne compétente.
• L’aire de travail doit être propre, bien éclairée et dégagée.
• Gardez les étiquettes de sécurité propres et en bon état.
• Portez des lunettes de protection pendant les travaux d'installation ou de maintenance de la pompe.
• La pompe ne doit pas fonctionner à vide. Remplissez-la d’eau avant le démarrage an d’éviter
de l’endommager.
• Assurez-vous que TOUTE L’ALIMENTATION ÉLECTRIQUE EST COUPÉE avant de brancher des ls
électriques. Câblez le système de surpression Inline en respectant le voltage approprié. Respectez
toutes les directives énoncées dans la section « Câblage » du présent manuel relativement au
câblage de la pompe.
Ce triangle est le symbole d’alerte de sécurité. Lorsque vous voyez ce s
!
symbole sur votre pompe
ou dans ce manuel, recherchez l’un des mots de signal suivants et soyez à l’aut du potentiel
de blessures :
s
!
DANGER
s
!
REMARQUE
informe des dangers qui entraîneront des blessures graves, la mort ou des
dommages matériels importants s’il est ignoré.
informe des dangers qui peuvent entraîner des blessures
graves, la mort ou des dommages matériels importants s’il est ignoré.
informe des dangers qui entraîneront ou risquent d’entraîner des
blessures mineures ou des dommages matériels importants s’il est ignoré.
indique des instructions spéciales importantes, qui ne sont cependant
pas liées à des dangers. Consultez et respectez attentivement toutes les directives de sécurité qui
gurent dans ce manuel et sur la pompe.
Avant de commencer
Consultez et respectez toutes les directives de sécurité. Consultez les plaques signalétiques du
produit pour obtenir des directives d’utilisation et des spécications supplémentaires.
3
Table des matières
Avant de commencer ..............................................................2
Spécications....................................................................4
Composants du système ...........................................................5
Dans la boîte ....................................................................6
Emplacement du système de surpression Inline .........................................7
Installation du système de surpression Inline ...........................................8
Utilisation du système de surpression Inline ...........................................11
Entretien du système de surpression Inline . . . . . . . . . . . . . . . . . . . . . . . . . . . . . . . . . . . . . . . . . . . . 12
Guide de dépannage .............................................................16
Foire aux questions ..............................................................17
Annexe 1 : Courbe de rendement du système de surpression Inline 400 .....................19
Annexe 2 : Tableaux de perte de charge ..............................................20
Garantie limitée .................................................................21

4
Système de surpression Inline
Spécications
Schéma de câblage interne
Inline 400 Inline 400
Numéro de
modèle 92061501/ 92061503 92061502/ 92061504
Entrée de
l’alimentation
électrique
Voltage (V) 115 V 230 V
Phase Monophasé
Fréquence 60 Hz
Intensité (max.) 6,6 A (RMS) 3,3 A (RMS)
Puissance (max.) 710 W 710 W
Taille(s) de calibre de l Cordon d’alimentation de calibre 18 Cordon d’alimentation de calibre 18
Conditions de
fonctionnement
Débit MAX. (GPM) 20
Surpression MAX. (psi) 55
Pression du système MAX. (psi) 95
Niveau sonore (dbA) < 55
Connexions de plomberie NPT 1 po (25,4 mm)
Hauteur d’aspiration max. (pi) 5
Bouchon de vidange NPT ¼ po (6,35 mm)
Type de boîtier Acceptable pour l’utilisation à l’intérieur ou à l’extérieur (avec un couvercle protecteur) / Boîtier CSA 3
Dimensions
de l’unité
Dimensions extérieures 29,6 po x 8,5 po x 8,9 po (75,2 cm x 21,6 cm x 22,6 cm)
Poids net (lb) 35
PCB HALL
MOTEUR
ASSEMBLAGE PCB PRINCIPALE
CONDENSATEUR
LE FIL NOIR DE LA PCB PRINCIPALE ET LE FIL
NOIR DU MOTEUR DOIVENT ÊTRE BRANCHÉS
À LA MÊME BORNE DE CONDENSATEUR.
CAPTEUR
TEMP.
ALIMENT.
ENTRANTE
Noir
Vert Rouge
Jaune
Rouge (230 V)
Blanc (115 V)
PCB
IU
ENTRÉE
INTERR.
PRESSION
SORTIE
INTERR.
PRESSION

Système de surpression Inline
5
Introduction
L’unité Inline 400 est un système de surpression d’eau simple à utiliser et prêt à l’emploi. Au
cœur de ce système de surpression entièrement intégré se trouvent un moteur et une pompe
submersible Franklin Electric ables. La tête de contrôle de l’unité est munie d’un capteur de
débit à eet Hall, d’interrupteurs de pression d’entrée/de sortie, d’un interrupteur de surcharge
thermique et d’une carte de circuits imprimés durable. Un rendement amélioré ore une
polyvalence dans les applications résidentielles et permet une installation facile (xation verticale
ou horizontale), tout en permettant au système de fonctionner avec presque n’importe quelle
conguration de plomberie existante.
Le système Inline de Franklin Electric fournit une surpression constante au moyen de composants
électroniques avancés, an d’entraîner et de contrôler une pompe et un moteur standards
Franklin Electric en fonction des demandes de surpression de l’application.
Composants du système
REMARQUE : Les installations à l’horizontale ne sont approuvées que pour une utilisation
INTÉRIEURE. Les installations VERTICALES sont approuvées pour une utilisation EXTÉRIEURE
lorsque le couvercle protecteur transparent est installé.
(2) boulons
de fixation
Bouchon de vidange
NPT ¼ po (6,35 mm)
Soupape
d’évacuation
d’air
Sortie
Capuchon
de contrôle
Cordon
d’alimentation
Entrée
Base de
fixation
Boîtier de
pompe
Affichage d’état
(6) vis de
couvercle
de tête

6
Système de surpression Inline
Dans la boîte
A. Système de surpression Inline
B. Manuel d’installation
Tous les systèmes de surpression Inline de Franklin Electric sont testés, inspectés et emballés
soigneusement an que vous les receviez en parfait état. À la réception de l’unité, examinez-la
attentivement an de vous assurer qu’elle n’a pas été endommagée pendant l’expédition.
Signalez immédiatement tout dommage apparent au transporteur et à votre vendeur. Le
transporteur est entièrement responsable de l’arrivée en bon état du matériel. Toute réclamation
concernant des dommages visibles ou cachés à la pompe doit d’abord être transmise au
transporteur.
Afchage d’état
Vert xe
Indique que le système est sous tension et allumé, mais n’est
pas en marche. Le voyant vert xe ne s’allume que lorsqu’aucune
défaillance n’est active.
Vert clignotant
Indique que la pompe est sous tension, allumée et en marche.
Rouge xe
Indique que le contrôle est sous tension, mais est en mode arrêt.
Appuyez sur le bouton pour faire passer l’unité en mode marche.
Rouge clignotant
Indique qu’une DÉFAILLANCE est survenue. L’appareil tentera automatiquement de redémarrer.
Si vous devez redémarrer la pompe immédiatement et que la défaillance n’est plus active,
vous pouvez appuyer sur ce bouton pour provoquer un redémarrage. Si le problème persiste,
communiquez avec un professionnel qualié dans le domaine de l’eau.
Bouton
Le bouton sert à allumer et à éteindre l’appareil. Lorsque l’unité est sous tension, mais en mode
arrêt (voyant rouge xe), il sut d’appuyer sur le bouton pour l’allumer. Si l’unité est sous tension
et en mode marche (voyant vert xe), il sut alors d’appuyer sur le bouton pour l’éteindre. Vous
pouvez également utiliser le bouton pour provoquer un redémarrage de la pompe après une
défaillance.
Emplacement du système de surpression Inline
Déterminez un emplacement approprié pour l’installation de la pompe en fonction du type
nominal du boîtier du système de surpression Inline. Optez pour un emplacement propre et
bien aéré protégé du gel, des inondations et des grandes chaleurs. En outre, cet endroit doit
permettre l’entretien du système et une vidange aisée du boîtier de la pompe, du réservoir et du
branchement d’eau. Une fondation préparée n’est pas essentielle dans la mesure où la surface est
solide et de niveau.

Système de surpression Inline
7
Installation mécanique
Emplacement:
Déterminez un emplacement approprié pour l’installation de la pompe en fonction du type nominal
du boîtier du système de surpression Inline. Optez pour un emplacement propre et bien aéré
protégé du gel, des inondations et des grandes chaleurs. En outre, cet endroit doit permettre
l’entretien du système et une vidange aisée du boîtier de la pompe, du réservoir pressurisé et du
branchement d’eau. (REMARQUE : Pour parer au cas peu probable d’une fuite interne, installez la
pompe de manière à ce qu’aucun indirect important ne puisse se produire.)
Orientation de l’installation de l’unité Inline400:
(consultez la gure 1 au besoin)
Il est recommandé (pour faciliter l’amorçage) d’installer l’unité Inline 400 dans l’orientation
VERTICALE. L’unité, cependant, peut être installée en position HORIZONTALE tant que la soupape
d’évacuation d’air est orientée vers le haut.
Dans les installations VERTICALES, l’unité Inline 400 est livrée de série avec une direction de
débit allant de GAUCHE à DROITE lorsque xée verticalement sur un mur. Cette direction de débit
peut être facilement changée pour aller de DROITE à GAUCHE en retirant les deux boulons de
xation de la tête, en faisant pivoter la pompe de 180° puis en réinstallant les boulons de xation
de la tête. Il est alors possible de retirer les (6) vis du capuchon de contrôle et de faire pivoter de
180° an de rendre lisible l’achage d’état. (REMARQUE : Faites preuve de prudence en faisant
pivoter le capuchon de contrôle, car un câble électrique est xé à la tête.)
Faites pivoter la pompe au complet
pour changer la direction du débit
Faites pivoter le capuchon de contrôle
pour orienter l’achage d’état

8
Système de surpression Inline
Raccord
universel
Réservoir de
deux gallons
(Le refoulement doit être raccordé à
un drain dont la valeur nominale
permet de recevoir le débit maximal de
la pompe à la pression de sécurité)
Manomètre
Manomètre
Soupape
de réduction
de la pression
(en option)
Soupape
de sûreté
Raccord
universel
Clapet
à bille
Clapet
à bille
Système de
surpression
Inline
Alimentation
Clapet
à bille
Approvisionnement en eau
5 pi (1,52 m)
ou moins
Débit
Vers la maison
Soupape
de réduction
de la pression
(en option)
-
A
F
C
B
D
G
E
* Il est recommandé (lorsque possible) d’installer la pompe Inline 400 en
PARALLÈLE avec l’alimentation entrante en eau. Cela permettra la mise
en place d’un « contournement d’entretien », an que le foyer typique
puisse continuer d’utiliser l’eau entrante (à une pression cependant
réduite) si des travaux d’entretien sont nécessaires. Ce type d’installation
requiert qu’un clapet à bille soit installé, comme illustré ci-dessus.
Figure1
Installation résidentielle typique de l’unité Inline400:
Le système de surpression Inline est conçu pour augmenter la pression utilisable d’un système,
tant que l’eau est en circulation. Vous trouverez ci-dessous un schéma des composants « requis »
et « recommandés » pour une application typique de surpression.
# Composant du système Description
ARéservoir pressurisé
Un réservoir pressurisé souple est requis (d’une capacité recommandée de
2 gal [7,6 l]) pour un contrôle approprié de l’unité Inline 400. Consultez la section
« Foire aux questions » pour plus de détails. Il est important qu’un clapet anti-
retour ne soit PAS installé entre la pompe et le réservoir pressurisé.
BManomètre d’ENTRÉE Un manomètre d’ENTRÉE est recommandé à des ns de conguration,
d’utilisation et de dépannage du système.
CManomètre de SORTIE Un manomètre de SORTIE est recommandé à des ns de conguration,
d’utilisation et de dépannage du système.
DSoupape de réduction de la pression de sortie
(PRV)
Cette unité Inline 400 exercera une surpression en aval égale à 55 psi plus la
pression entrante en psi. Si la plomberie de refoulement et les appareils ne sont
pas conçus pour ces pressions accrues, il est recommandé d’installer une PRV
après le réservoir pressurisé, an de limiter la pression maximale en aval.
ESoupape de réduction de la pression d’entrée
(PRV)
Cette unité Inline 400 ne fonctionnera pas si la pression entrante d’eau est
supérieure à 40 psi. Si l’alimentation entrante est d’une pression supérieure à
40 psi, une PRV peut être installée sur l’entrée.
FSoupape de sûreté de sortie
Il est recommandé d’installer une soupape de sûreté dans la plomberie de
refoulement, an de protéger les composants en aval des pointes de pression
anormales qui peuvent se produire dans certaines applications. Assurez-vous
que le refoulement des soupapes est acheminé vers un drain d’une taille
appropriée au débit maximal du système de pompe ou de l’alimentation entrante
en eau.
GDégagement de xation
Pour faciliter l’entretien, il est recommandé de laisser un dégagement de 20 po
(50,8 cm) sous la pompe (pour le retrait du boîtier uniquement). Cela peut être
réduit si l’unité est installée avec les deux unions de plomberie illustrées ci-
dessus. Cela facilitera le retrait de la pompe complète du système au moment
de l’entretien.
Système de surpression Inline
9
Procédure d’installation de l’unité Inline400 (plomberie):
1. Coupez l’alimentation électrique appropriée du disjoncteur principal.
2. Fermez toutes les soupapes d’alimentation en eau nécessaires pour couper l’alimentation
entrante en eau. Vidangez soigneusement l’eau du système de plomberie existant.
3. Installez le système de surpression Inline à l’emplacement souhaité au moyen des vis et
des trous de xation. Les vis de xation ne sont pas incluses avec le produit. Le système
de surpression Inline peut être orienté dans n’importe quelle direction, mais ne doit pas être
retourné ou suspendu à partir d’une surface horizontale.
4. Installez la plomberie d’entrée et de sortie et le réservoir pressurisé comme illustré à
la gure 1. L’entrée et la sortie de l’unité sont marquées par « INLET » (« ENTRÉE ») et
« OUTLET » (« SORTIE »), respectivement. Les unions devraient être installées sur les
extrémités d’aspiration et de refoulement de la pompe (l’utilisation d’un ruban scellant pour
letage PTFE plutôt qu’une pâte est recommandée; ne serrez pas excessivement). Des
clapets anti-retour internes sont fournis sur les extrémités d’aspiration et de refoulement de
la pompe. Ces clapets peuvent aider à prévenir le reux. Si vous utilisez le contournement
facultatif, vous devriez préalablement installer un clapet anti-retour dans le contournement
(consultez la gure 1). Assurez-vous de consulter tous les codes de plomberie locaux an
de veiller au respect de toutes les exigences relatives à la prévention des reux.
5. Installez un manomètre sur les tuyaux d’entrée et de sortie. Cela est requis an de régler le
système de manière appropriée et de faciliter le dépannage du système.
6. Installez le réservoir pressurisé en aval de la pompe. Il devrait être situé dans un rayon de
5 pi (1,52 m) du refoulement de la pompe. Il ne doit pas y avoir de clapet anti-retour ou de
soupape de contrôle entre le réservoir pressurisé et le système de surpression Inline.
7. Installez une soupape de sûreté en aval du clapet anti-retour. Le refoulement doit être
raccordé à un drain dont la valeur nominale permet de recevoir le débit maximal de la
pompe lorsque cette dernière est réglée pour dégager la pression.
Procédure d’installation de l’unité Inline400 (électrique):
1. Faites appel à un électricien agréé pour réaliser le câblage. Tous les raccordements doivent
être eectués conformément aux codes de l’électricité nationaux et locaux applicables.
2. Coupez le courant du disjoncteur principal.
3. Assurez-vous que le circuit de dérivation indépendant du système de surpression Inline est
équipé d’un disjoncteur de 15 A.
4. Vériez que l’alimentation en électricité correspond à la capacité nominale du système de
surpression Inline faisant l’objet de l’installation. La tension d’alimentation doit correspondre
à plus ou moins 10 % à celle inscrite sur la plaque signalétique du système.
5. Chaque installation doit être mise à la terre. Un conducteur de mise à la terre able doit
relier la pompe et le panneau de distribution.
6. Toutes les connexions internes du système de surpression Inline sont déjà câblées.
7. Votre unité doit être branchée dans une prise de courant appropriée.
s AVERTISSEMENT
!
AVERTISSEMENT
Le système de surpression Inline peut générer une pression très élevée dans
certaines situations.
Veillez à installer une soupape de sûreté pouvant soutenir un plein débit à une pression de
120 psi (6,9 bars) Installez la soupape de sûreté à proximité du réservoir pressurisé.
Il peut être nécessaire d’installer une soupape réductrice de pression an de limiter la
surpression potentielle. Installez la soupape réductrice de pression après le réservoir
pressurisé.

10
Système de surpression Inline
Considérations sur la plomberie à des ns d’amorçage:
L’unité Inline 400 doit être amorcée avec de l’eau avant de pouvoir fonctionner de manière
appropriée. Il y a deux clapets anti-retour internes intégrés à la tête de l’unité, qui doivent s’ouvrir
pendant l’amorçage. Cela exige que l’eau d’amorçage ait une pression entrante d’au moins
1,5 psi. Cela est particulièrement important si l’application inclut le fait de sortir sous surpression
de l’eau hors d’une citerne peu profonde. Il y a deux moyens simples d’accomplir cela dans la
plomberie d’aspiration.
Amorçage de l’unité Inline400:
Ne faites jamais fonctionner la pompe à vide. Remplissez le tuyau d’aspiration, le boîtier de
la pompe et la tuyauterie de refoulement avec de l’eau. Une installation typique sera alimentée
par un réservoir ou une source d’eau pressurisée, créant ainsi ce que l’on appelle un état
d’aspiration immergée
Alors que l’unité est complètement raccordée au système, ouvrez la soupape d’alimentation en
eau et laissez l’eau sous pression s’écouler au travers de l’unité. Placez un petit seau sous le
réservoir de l’unité Inline an de recueillir l’eau qui est évacuée par l’évacuation d’air pendant
l’amorçage. Au moyen d’un petit tournevis à tête plate, ouvrez lentement la soupape d’évacuation
d’air (située directement sous la sortie) an de permettre à l’air de sortir du réservoir et de la
pompe interne. Lorsque la soupape cesse de crachoter et que seul un mince let d’eau en sort,
fermez la soupape d’évacuation d’air. L’unité est alors amorcée et prête à être utilisée.
3 PI (91 CM) MIN.
AJOUTER DE L’EAU POUR L’AMORÇAGE ICI
SOUPAPE DE COUPURE
TUBE D’AMORÇAGE
ENTRÉE
CONDUIT DE SORTIE
SOUPAPE DE SORTIE
SOUPAPE D’ÉVACUATION
D’AIR (ÉVENT)
Raccord de tuyau d’arrosage
ENTRÉE
CONDUIT DE SORTIE
SOUPAPE DE SORTIE
SOUPAPE D’ÉVACUATION
D’AIR (ÉVENT)
AMORÇAGE : Une pression de 1,5 psi
peut être atteinte à l’entrée en versant de
l’eau au travers d’une colonne verticale
d’eau de 3 pi (91,4 cm). Assurez-vous
de garder la soupape d’entrée fermée et
d’ouvrir la soupape d’évacuation d’air
jusqu’à ce que l’air soit entièrement purgé
de l’unité.
AMORÇAGE : Un débit ou une pression
d’entrée adéquats peuvent être atteints à
l’entrée en connectant un tuyau d’arrosage
à un raccord sur le côté entrée de la pompe.
Assurez-vous de garder la soupape d’entrée
fermée, d’activer l’alimentation en eau et
d’ouvrir la soupape d’évacuation d’air jusqu’à
ce que l’air soit entièrement purgé de l’unité.
Système de surpression Inline
11
Utilisation de l’unité Inline400:
Le système doit être purgé de tout son air. Une soupape d’évacuation de l’air est déjà installée sur
le système de surpression Inline an de faciliter l’évacuation de l’air.
1. Fermez toutes les sorties du système, puis ouvrez la soupape d’évacuation d’air.
2. Ouvrez toutes les soupapes d’entrée pour permettre à l’alimentation en eau d’entrer dans la
pompe. Préparez-vous à ce qu’un mélange d’air et d’eau soit refoulé par la soupape. Il peut
être utile d’avoir un petit seau pour recueillir l’eau évacuée.
3. Fermez la soupape d’évacuation de l’air une fois que l’air est sorti du système (cela est
indiqué par un petit let constant d’eau qui sort de la soupape d’évacuation).
4. Une fois que l’air a été évacué du système, ouvrez légèrement une soupape de sortie
du système. Démarrez la pompe en appuyant sur le bouton. Elle sera alors en mode
automatique.
5. Ouvrez immédiatement à moitié une soupape de refoulement. Si de l’eau sous pression ne
s’écoule toujours pas après quelques minutes de fonctionnement, répétez le processus
d’amorçage comme expliqué ci-dessus. REMARQUE : Si l’unité ne s’amorce pas après
10 secondes, la pompe s’arrêtera et le voyant ROUGE clignotera sur l’achage. Cela est
causé par une condition d’erreur de SOUS-CHARGE, dans laquelle la pompe ne reçoit pas
encore une charge qui indique que de l’eau est pompée. Appuyez simplement à nouveau
sur le bouton de démarrage, an de permettre à la pompe de fonctionner pendant encore
10 secondes pour l’amorçage. RÉPÉTEZ cela au besoin.
6. Une fois la pompe en marche, ouvrez complètement la soupape de refoulement en
laissant la pompe fonctionner jusqu’à ce que de l’eau claire s’écoule. Aucun amorçage
supplémentaire ne devrait être nécessaire, sauf en cas de vidange de la pompe ou de fuite
dans la plomberie d’aspiration.
REMARQUE : N’OUVREZ JAMAIS LA SOUPAPE D’ÉVACUATION ALORS QUE LA POMPE
FONCTIONNE, car cela peut permettre à de l’air d’ENTRER dans la pompe plutôt que de sortir
du système.
Effets de fuites du système:
Des systèmes d’eau avec fuites peuvent faire fonctionner le système de surpression Inline plus
que prévu. Cela est causé par le démarrage de l’unité lorsque la pression de sortie baisse sous
la pression prédénie de refoulement (réglée en usine à 40 psi). Un fonctionnement continu ou
des démarrages et arrêts fréquents n’endommagent pas le contrôleur, la pompe ou le moteur.
Vous devriez tout de même régler le problème, si possible, an d’éviter une augmentation de la
consommation d’électricité du système.
Paramétrage/réglage n du rendement de l’unité Inline400:
Lorsqu’installé correctement avec un réservoir pressurisé externe (une capacité de 2 gal [7,6 l]
est recommandée) il est possible de régler la pression d’ACTIVATION de la pompe de l’unité
Inline 400.
La pompe Inline 400 est réglée en usine pour démarrer la surpression (activer la pompe) lorsque la
pression de refoulement baisse sous 40 psi. Dans certaines applications, il peut être souhaitable
de régler ce paramètre à une valeur plus élevée ou plus faible. Consultez l’exemple ci-dessous :
Dans cet exemple, une résidence est alimentée en eau pressurisée provenant du réseau municipal
local, qui uctue entre 30 psi MAX. et 25 psi MIN. Comme expliqué ci-dessus, l’unité Inline 400
ajoute 55 psi à la pression entrante d’eau.
La pression totale maximale en aval est de 30 psi + 55 psi = 85 psi
La pression totale minimale en aval est de 25 psi + 55 psi = 80 psi
s AVERTISSEMENT
!
AVERTISSEMENTDébranchez l’alimentation électrique de l’unité avant
de tenter de retirer le capuchon de contrôle et de régler
l’interrupteur de pression de refoulement.

12
Système de surpression Inline
Interrupteur de pression
de refoulement
SORTIEENTRÉE
Cet état entraîne une baisse de pression de 80 ou 85 psi jusqu’à 40 psi avant que la pompe
ne s’active initialement (cette BAISSE est causée par l’eau stockée qui est purgée du réservoir
pressurisé). Si l’installateur désire changer cela d’une baisse de 80 à 40 psi à une baisse de 80 à
50 psi, l’interrupteur de pression de refoulement peut être réglé pour activer la pompe lorsque la
pression de refoulement atteint 50 psi. Suivez ces étapes :
1. Déconnectez l’unité de l’alimentation entrante.
2. Retirez les (6) vis du capuchon de contrôle puis enlevez ce dernier. (REMARQUE : Faites
preuve de prudence en enlevant le capuchon de contrôle, car un câble électrique est xé à
la tête.)
3. Au moyen d’une clé hexagonale de 7/32 po (5,56 mm), tournez la vis de l’interrupteur
de pression de refoulement interne d’un tour complet dans le sens horaire. Cela devrait
accroître la pression de coupure de l’interrupteur de 10-12 psi.
4. Replacez le capuchon de contrôle et réinstallez les (6) vis.
5. Réglez le réservoir pressurisé à 48 psi (il doit toujours être inférieur de 2 psi à la pression
d’activation)
REMARQUE : Ne réglez JAMAIS l’interrupteur de pression de refoulement à un réglage
SUPÉRIEUR à la SOMME de votre pression entrante minimale + 40 psi, car cela pourrait
causer une défaillance (clignotement ROUGE).
Entretien de l’unité Inline400:
Purge du système:
La déconnexion de la pompe ne purge pas nécessairement les autres parties du système de
tuyauterie. Si vous avez des préoccupations au sujet de la procédure appropriée ou du besoin
de purger la plomberie d’aspiration, communiquez avec un professionnel en systèmes d’eau.
Tous les systèmes Inline, toute la tuyauterie et tous les réservoirs d’eau exposés au gel doivent
être vidangés à un moment opportun. Un bouchon de vidange au bas de l’unité peut être utilisé
pour purger le système désactivé. Si vous avez des doutes concernant la procédure à suivre
pour vidanger le réservoir pressurisé du système, contactez le fabricant du réservoir pour
obtenir de l'aide.
s AVERTISSEMENT
!
AVERTISSEMENTDébranchez l’alimentation électrique de l’unité avant
d’eectuer ces fonctions d’entretien. Toutes les fonctions
d’entretien doivent être eectuées par un professionnel
d’entretien qualié.

Système de surpression Inline
13
Nettoyage de l’interrupteur de débit:
Dans certains cas, il se peut que l'interrupteur de débit devienne obstrué par des dépôts minéraux
ou bouché par des débris. Le cas échéant, nettoyez-le en respectant la marche à suivre suivante :
1. Déconnectez l’unité de l’alimentation entrante.
2. Il se peut que le système soit sous pression. Ainsi, fermez les soupapes d’entrée et de
sortie et purgez toute l’eau sous pression du système avant de commencer les travaux
d’entretien de l'interrupteur de débit.
3. Retirez les (6) vis du capuchon de contrôle puis enlevez ce dernier. (REMARQUE : Faites
preuve de prudence en enlevant le capuchon de contrôle, car un câble électrique est xé
à la tête.)
4. Retirez les trois vis Phillips qui maintiennent le capuchon de débit en place.
5. Retirez le capuchon de contrôle de débit. Le joint torique peut s’enlever en même temps
que le capuchon ou rester dans la tête. Retirez le joint torique et assurez-vous qu’il est
exempt de débris. Replacez-le au fond du capuchon de débit.
6. Au moyen d’un petit objet en métal, comme un tournevis ou un tourne-écrou, extrayez le
piston magnétique régulateur de débit de la cavité. (Il est magnétisé et collera donc à l’objet
métallique.)
7. Nettoyez le piston magnétique régulateur de débit au moyen d’un linge.
8. Nettoyez tous les débris ou résidus de la tête, à l’endroit où le piston est inséré.
9. Replacez le piston dans la tête. Appuyez fermement sur le capuchon de débit, sans le joint
torique, pour l’insérer dans la tête. Serrez les (3) vis à un couple de 15 po-lb (ne serrez pas
de manière excessive)
10. Replacez le capuchon de contrôle et serrez les (6) vis à un couple de 15 po-lb.
11. Recalibrez la tête de contrôle (consultez la page 14)
Capuchon de
débit, vis,
joint torique
Piston
Tête de contrôle
Capuchon de débit
Vis

14
Système de surpression Inline
Recalibration de la tête de contrôle:
À certains moments, particulièrement après l’entretien, l’unité Inline 400 doit être recalibrée.
Cela est nécessaire an de rétablir un point de référence pour l’indication du débit. Suivez ces
procédures pour la calibration du débit sur le terrain :
1. Avant d’allumer l’unité, assurez-vous qu’il n’y a aucun débit d’eau dans le système. Cela
vous assurera que le piston de débit est en position pleinement au repos (aucun débit).
2. En tenant enfoncé le bouton-poussoir sur l’achage d’état, branchez le cordon
d’alimentation de l’unité dans la prise (ou activez le disjoncteur si l’unité est câblée de
manière permanente). Maintenez la pression sur le bouton pendant cinq secondes, jusqu’à
ce que les voyants à DEL vert et rouge clignotent; cela signie que la calibration est
terminée. Relâchez le bouton et les voyants devraient s’allumer en continu, indiquant ainsi la
réussite de la calibration.
3. Ouvrez les soupapes/robinets pour démarrer le débit et conrmez que l’unité fonctionne
correctement.
Dimensions hors tout de l’unité Inline400:
[225]
8,86
[135]
5,31
[45]
1,77
[35]
1,38
[146]
5,75
[90]
3,54
[25]
0,98
[180]
7,09
[216]
8,50
[117]
4,61
[225]
8,86
[95]
3,74
[194]
7,64
[444]
17,48
[752]
29,61
Description du modèle No de
commande
Clé de boîtier de pompe 305572001
Interrupteur de pression d’entrée ou de sortie
(40 psi) 305572007
Boîtier de pompe de remplacement 305572009
Capuchon de contrôle de remplacement,
avec achage 305572010
Base de xation de remplacement 305572011
Condensateur de moteur, 115 V (avec gaine) 305572012
Condensateur de moteur, 230 V (avec gaine) 305572013
Cordon d’alimentation, 115 V 305572014
Cordon d’alimentation, 230 V 305572015
Trousse de piston de débit 305572016
Joint torique de boîtier de pompe 305572017
Kit de protection extérieure capuchon 305572018

Système de surpression Inline
15
Couvercle de protection contre les intempéries Inline 400
Pour des installations verticales extérieures de l’unité Inline 400, le couvercle de protection
contre les intempéries qui est fourni doit être utilisé an d’assurer la protection optimale de
l’unité. Il n’est pas recommandé que l’unité Inline 400 soit installée à l’horizontale dans des
applications à l’extérieur où l’unité pourrait être directement exposée aux intempéries. Le fait de
ne pas utiliser ce couvercle protecteur dans des installations à l’extérieur annule la garantie de
l’unité Inline 400.
L’installation du couvercle (ci-inclus) de protection contre les intempéries est simple. Une fois
que l’unité Inline 400 a été installée, xez simplement le couvercle protecteur sur le dessus de
l’unité au moyen xation refermable. Le couvercle de protection transparent permet d’examiner
les voyants de fonctionnement de l’unité, mais ne donne pas accès au bouton d’interface
utilisateur. An d’appuyer sur le bouton d’interface utilisateur, le couvercle doit être retiré.
Une fois que l’activation du bouton requis est terminée, le couvercle de protection contre les
intempéries doit être xé à nouveau sur l’unité.
1) Unité Inline 400 installée à la verticale
2) Couvercle de protection contre les intempéries
3) Fixation refermable
1
2
3

16
Système de surpression Inline
Guide de dépannage de l’unité Inline400
Condition Voyants lumineux Cause possible Mesure corrective
L’unité ne s’allume
pas; aucune DEL
VERTE ou ROUGE
allumée sur le
capuchon
de contrôle
Aucun Disjoncteur déclenché ou désactivé Activez le disjoncteur
Aucun Disjoncteur déclenché ou désactivé Consultez un électricien certié pour
câbler la prise de manière appropriée
L’unité fonctionne
brièvement, ne
génère pas de
pression puis
s’éteint
Clignotement vert (10 s) puis
clignotement ROUGE Eau insusante Vériez l’alimentation en eau et les
soupapes
Clignotement vert (10 s) puis
clignotement ROUGE Unité amorcée de manière insusante
Consultez le manuel du propriétaire à
la section pour la technique appropriée
d’amorçage
Clignotement vert (10 s) puis
clignotement ROUGE Fonctionnement à sec Vériez l’alimentation en eau et les
soupapes
L’unité ne démarre
pas en réponse à
une demande d’eau
Vert xe Pression d’eau d’entrée au-dessus de
40 psi
Installez une soupape réductrice de
pression sur l’entrée, an de réduire la
pression d’entrée
L’unité s’allume et
s’éteint en cycle
(cycle rapide)
Vert clignotant Pression de charge inappropriée dans
le réservoir
Réglez la pression dans le réservoir
pressurisé à 2 psi de moins que la
pression d’activation
Vert clignotant Clapet anti-retour entre le réservoir et
l’unité
Placez le clapet anti-retour après le
réservoir pressurisé
L’unité ne
démarre pas
ROUGE xe L’unité est fermée Appuyez sur le bouton d’alimentation sur
l’interface utilisateur
ROUGE clignotant Surtension (le voltage d’entrée est
supérieur à +10 %)
Vériez le voltage d’alimentation et
corrigez-le si possible
ROUGE clignotant Sous-tension (le voltage d’entrée est
inférieur à -10 %)
Vériez le voltage d’alimentation et
corrigez-le si possible
ROUGE clignotant Surchaue en raison d’une température
excessive de l’eau Alimentez la pompe en eau froide
ROUGE clignotant Pompe en condition d’alarme Réinitialisez la pompe en appuyant sur le
bouton d’alimentation
L’unité fonctionne
ou cycle
continuellement
Vert clignotant Fuite/utilisation au-dessus de ½ GPM
dans la plomberie du système Réparez la plomberie qui fuit
Vert clignotant Un clapet anti-retour interne est bloqué/
endommagé
Placez un nouveau clapet anti-retour
avant l’unité dans la plomberie
d’ENTRÉE
Vert clignotant Un piston de débit interne est coincé en
position ouverte
Nettoyez le piston de débit (consultez la
page 14)
REMARQUE : Le moteur dans cette unité comporte une protection thermique qui réagit au courant du moteur et à la chaleur du
bobinage du moteur et de la température ambiante. Lorsque la combinaison de courant et de chaleur dépasse un point prédéterminé,
le protecteur s’ouvre et coupe le circuit. Lorsque la température du bobinage revient à un niveau plus près de la normale, le protecteur
se réinitialise automatiquement.
Système de surpression Inline
17
Foire aux questions
Qu’est-ce qui cause la surpression de l’unité Inline?
L’unité Inline est munie d’un capteur de débit et d’interrupteurs doubles de pression. Elle
s’allumera lorsque :
• La pression de refoulement baisse sous 40 psi ou
• La pression de refoulement est égale à la pression d’entrée
Cette logique de démarrage permet le refoulement complet du réservoir pressurisé avant le
démarrage de l’unité du système Inline. Cela réduit la consommation d’énergie et augmente la
durée de vie du produit en permettant de petites utilisations ou fuites d’eau intermittentes.
Qu’est-ce qui cause la n de la surpression du système Inline?
Le système Inline cesse la surpression lorsque la demande en eau baisse sous le débit de ½ GPM
(la pompe se met hors tension environ 15 secondes après l'arrêt du ux). L’unité peut également
être fermée manuellement pendant son fonctionnement normal, en appuyant sur le bouton sur le
capuchon de l’unité.
Quelle protection interne du système est offerte par l’unité Inline?
Le système Inline surveille plusieurs fonctions diérentes an de protéger l’unité si l’une des
conditions suivantes se produit pendant le fonctionnement normal :
• Surtension (+10 % de la valeur nominale)
• Sous-tension (-10 % de la valeur nominale)
• Fonctionnement à sec (c.-à-d. lorsque le moteur fonctionne, mais qu’aucune pression
n’est créée)
• Surchaue (température de l’eau interne supérieure à 120 °F [49 °C])
Il s’agit aussi de défaillances de l’unité Inline 400, indiquées par un voyant clignotant rouge sur le
capuchon de contrôle.
Quel est le rôle du réservoir pressurisé?
Le réservoir pressurisé remplit deux rôles.
1. Il permet l’utilisation de petits volumes d’eau sans démarrage de l’unité Inline.
2. Il ajoute un tampon de pression au système an d’absorber les pointes ou uctuations
indésirables de pression.
Il est recommandé que le réservoir soit chargé à 38 psi au moment de l’installation.
Quelle est la pression maximale d’entrée?
La pression nominale maximale interne de l’unité Inline est de 100 psi. Ainsi, la somme de la
pression maximale d’entrée et de la pression maximale de pompe Inline (consultez le tableau de
rendement) ne doit pas dépasser 100 psi. L’unité Inline est munie d’un interrupteur de pression
interne qui empêche le démarrage de l’unité lorsque la pression d’entrée dépasse 40 psi avant
ou pendant le fonctionnement désiré. Exemple : Si vous désirez utiliser cette surpression dans
une application avec une pression entrante de 45 psi, il est recommandé d’installer une soupape
de réduction de la pression (PRV) sur le côté entrée de l’unité. La PRV est utilisée pour maintenir
une pression constante sous la pression d’activation; elle peut être utilisée pour limiter la pression
maximale créée.
18
Système de surpression Inline
Quelle est la pression maximale de sortie?
L’unité Inline maintiendra une pression du système « ZÉRO DÉBIT » égale à la somme de la
pression entrante (psi) et de la pression de coupure de la courbe de fonctionnement de la pompe.
Par exemple, si la pression d’entrée est de 38 psi, le système ajoutera au moment de la coupure
une pression additionnelle de 55 psi. Cela signie que TOUTE la plomberie en aval de l’unité
Inline sera soumise à une pression maintenue de 93 psi (38 + 55). Si cette pression élevée est
indésirable en raison de l’état ou de la conguration de la plomberie ou des appareils en place, il
est recommandé d’installer une PRV sur le refoulement de l’unité Inline an de limiter la pression
maximale distribuée.
Quelle est la température maximale de fonctionnement de l’unité Inline?
L’unité Inline est munie de deux capteurs de température. Un capteur est intégré au moteur an
de protéger les bobinages de ce dernier. L’autre capteur est installé dans la tête de contrôle et
surveille la température interne de l’eau. Dans les deux cas, l’unité connaîtra une défaillance à une
température maximale de 120 °F (49 °C) et redémarrera lorsque la température baissera sous 95 °F
(35 °C).
Est-ce que l’unité Inline doit être installée en position verticale?
L’unité Inline peut être installée en position horizontale, pourvu que l’orice de refoulement soit
dirigé vers le haut. Cette orientation place la soupape d’évacuation d’air vers le haut, ce qui lui
permet de fonctionner correctement pendant l’amorçage initial de la pompe.
Comment amorce-t-on le système Inline?
L’unité Inline doit être amorcée de manière appropriée avant son fonctionnement initial (avant
que l’unité ne soit branchée). Puisque deux clapets anti-retour à ressort sont intégrés à la tête
Inline, une petite pression d’eau positive (1,5 psi) est requise pour ouvrir ces clapets et amorcer
correctement l’unité.
Alors que l’unité est complètement raccordée au système, ouvrez la soupape d’alimentation en
eau et laissez l’eau sous pression s’écouler au travers de l’unité. Il est recommandé de placer
un petit seau sous le réservoir de l’unité Inline an de recueillir l’eau qui est évacuée par l’unité
pendant l’amorçage. Au moyen d’un petit tournevis à tête plate, ouvrez lentement la soupape
d’évacuation d’air (située directement sous la sortie) an de permettre à l’air de sortir du réservoir
et de la pompe interne. Lorsque la soupape cesse de crachoter et que seul un mince let d’eau en
sort, fermez la soupape d’évacuation d’air. L’unité est alors amorcée et prête à être utilisée.
REMARQUE : N’ouvrez pas la soupape d’évacuation d’air pendant que la pompe fonctionne.
Le système Inline peut-il être utilisé dans des applications avec une
hauteur d’aspiration?
Il n’est pas recommandé d’utiliser l’unité Inline dans des applications avec une hauteur
d’aspiration de plus de 5 pi (152 cm). Une source secondaire d’eau sous pression (p. ex., tuyau
avec eau de la ville ou tuyau élévateur de 3 pi [91 cm]) peut être nécessaire an de fournir un
amorçage adéquatement pressurisé, comme décrit ci-dessus.

Système de surpression Inline
19
Annexe1: Courbe de rendement du système de surpression Inline (60 Hz)
60 140
120
100
80
60
40
20
0
0
0 10 20 30 40 50 60 70 80 90
0 1 2 3 4 5
5 10 20 2515
50
40
40
30
20
10
0
30
20
10
0
mpsi
GPM (gallons/minute)
LPM (litres/minute)
m3/h
pi

20
Système de surpression Inline
Annexe2: Tableaux de perte de charge
Débit
GPM (gallons/minute)
Vitesse
pi/s
Perte de charge en pieds/100 pi
(30,48 m) de tuyau Vitesse
pi/s
Perte de charge en pieds/100 pi
(30,48 m) de tuyau
Acier
(C = 100)
PVC
(C = 140)
Cuivre
(C = 130)
2 1,20 1,93 1,03 1,33 1,50
3 1,80 4,09 2,19 1,99 3,18
4 2,41 6,96 3,73 2,65 5,42
5 3,01 10,53 5,64 3,31 8,20
6 3,61 14,75 7,91 3,98 11,49
7 4,21 19,63 10,53 4,64 15,29
8 4,81 25,13 13,48 5,30 19,57
9 5,41 31,26 16,76 5,97 24,35
10 6,02 38,00 20,38 6,63 29,59
Débit
GPM (gallons/minute)
Vitesse
pi/s
Perte de charge en pieds/100 pi
(30,48 m) de tuyau Vitesse
pi/s
Perte de charge en pieds/100 pi
(30,48 m) de tuyau
Acier
(C = 100)
PVC
(C = 140)
Cuivre
(C = 130)
4 0,86 0,57 0,30 1,02 0,53
6 1,29 1,20 0,64 1,53 1,13
8 1,72 2,04 1,10 2,04 1,92
10 2,15 3,09 1,66 2,55 2,90
12 2,57 4,33 2,32 3,06 4,07
14 3,00 5,76 3,09 3,57 5,41
16 3,43 7,38 3,96 4,08 6,93
18 3,86 9,18 4,92 4,59 8,62
20 4,29 11,16 5,98 5,11 10,48
25 5,36 16,87 9,05 6,38 15,85
Débit
GPM (gallons/minute)
Vitesse
pi/s
Perte de charge en pieds/100 pi
(30,48 m) de tuyau Vitesse
pi/s
Perte de charge en pieds/100 pi
(30,48 m) de tuyau
Acier
(C = 100)
PVC
(C = 140)
Cuivre
(C = 130)
2 0,74 0,60 0,32 0,78 0,41
4 1,48 2,15 1,15 1,56 1,48
6 2,23 4,56 2,44 2,33 3,14
8 2,97 7,76 4,16 3,11 5,35
10 3,71 11,74 6,29 3,89 8,08
12 4,45 16,45 8,82 4,67 11,33
14 5,20 21,89 11,74 5,44 15,07
16 5,94 28,03 15,03 6,22 19,30
18 6,68 34,86 18,70 7,00 24,00
Tuyau de ¾ po (19,1 mm)
REMARQUE : Les tableaux montrent la perte de charge par 100 pi (30,5 m) de tuyau. Pour convertir la valeur en perte de charge par pied,
déplacez le signe décimal de deux chiffres vers la gauche.
Tuyau de 1¼ po (31,8 mm)
Tuyau de 1 po (25,4 mm)
21
GARANTIE LIMITÉE STANDARD
Sauf mention contraire dans le cadre d’une garantie prolongée, pour douze (12) mois à compter de la date d’installation,
mais en aucun cas pour plus de vingt-quatre (24) mois à compter de la date de fabrication, Franklin garantit par les
présentes à l’acheteur (« l’acheteur ») de produits Franklin que, pour la période applicable de garantie, les produits
achetés (i) seront exempts de défaut de main-d’oeuvre et de matériau au moment de l’expédition, (ii) fonctionneront
de manière conforme aux échantillons fournis précédemment et (iii) seront conformes aux spécications publiées
ou convenues par écrit entre l’acheteur et Franklin. Cette garantie limitée couvre uniquement les produits achetés
directement auprès de Franklin. Si un produit n’est pas acheté auprès d’un distributeur ou directement auprès de
Franklin, ce produit doit être installé par un installateur certié par Franklin pour que cette garantie limitée s’applique.
Cette garantie limitée ne peut être cédée ou transférée à un acheteur ou utilisateur subséquent.
a. CETTE GARANTIE LIMITÉE REMPLACE TOUTES LES AUTRES GARANTIES, ÉCRITES OU VERBALES, PRÉVUES
PAR LA LOI, EXPLICITES OU IMPLICITES, Y COMPRIS TOUTE GARANTIE DE VALEUR MARCHANDE OU
D’ADÉQUATION À UNE FIN PARTICULIÈRE. LE RECOURS UNIQUE ET EXCLUSIF DE L’ACHETEUR EN CAS DE
VIOLATION PAR FRANKLIN DE SES OBLIGATIONS EN VERTU DES PRÉSENTES, Y COMPRIS LA VIOLATION DE
TOUTE GARANTIE EXPLICITE OU IMPLICITE OU AUTRE, À MOINS D’ÊTRE COUVERTE PAR LES PRÉSENTES OU
DANS UN DOCUMENT ÉCRIT INCLUS DANS CETTE GARANTIE LIMITÉE, PORTERONT SUR LE PRIX D’ACHAT PAYÉ
À FRANKLIN POUR LE PRODUIT NON CONFORME OU DÉFECTUEUX, OU LA RÉPARATION OU LE REMPLACEMENT
DU PRODUIT NON CONFORME OU DÉFECTUEUX, À LA DISCRÉTION DE FRANKLIN. TOUT PRODUIT FRANKLIN
DÉTERMINÉ COMME ÉTANT DÉFECTUEUX PAR FRANKLIN PENDANT LA PÉRIODE DE GARANTIE SERA, À
L’ENTIÈRE DISCRÉTION DE FRANKLIN, RÉPARÉ, REMPLACÉ OU REMBOURSÉ EN FONCTION DU PRIX D’ACHAT
PAYÉ. Certains territoires de compétence ne permettent pas de limitation de la durée d’une garantie implicite; ainsi, les
limitations et exclusions reliées aux produits peuvent ne pas s’appliquer.
b. SANS LIMITER LE CARACTÈRE GÉNÉRAL DES EXCLUSIONS DE CETTE GARANTIE LIMITÉE, FRANKLIN
NE SERA PAS RESPONSABLE ENVERS L’ACHETEUR OU TOUTE TIERCE PARTIE DE QUELCONQUES (i)
FAUX FRAIS OU AUTRES FRAIS, COÛTS ET DÉPENSES (Y COMPRIS LES COÛTS D’INSPECTION, DE MISE À
L’ESSAI, D’ENTREPOSAGE OU DE TRANSPORT) OU (ii) DOMMAGES, Y COMPRIS LES DOMMAGES INDIRECTS,
PARTICULIERS OU PUNITIFS, NOTAMMENT, SANS S’Y LIMITER, LA PERTE DE PROFITS, DE TEMPS OU
D’OCCASIONS D’AFFAIRES, PEU IMPORTE SI FRANKLIN EN EST LA CAUSE, ET PEU IMPORTE S’IL Y A OU SI
ON PEUT MONTRER QU’IL Y A UN DÉFAUT DE MATÉRIAU OU DE MAIN-D’OEUVRE, UNE NÉGLIGENCE DANS LA
FABRICATION OU LA CONCEPTION OU UN DÉFAUT DE MISE EN GARDE.
c. La responsabilité de Franklin découlant de la vente ou de la livraison de ses produits, ou de leur utilisation, qu’elle soit
basée sur le contrat de garantie, la négligence ou autre, ne pourra en aucun cas dépasser le coût de réparation ou de
remplacement du produit; et à l’expiration de toute période de garantie applicable, toutes ces responsabilités prendront
n.
d. Sans limiter le caractère général des exclusions de cette garantie limitée, Franklin ne garantit pas l’adéquation d’une
quelconque spécication fournie directement ou indirectement à l’acheteur et ne garantit pas que les produits Franklin
fonctionneront de manière conforme à de telles spécications. Cette garantie limitée ne s’applique pas à un produit qui
a été soumis à une mauvaise utilisation (y compris une utilisation non conforme à la conception du produit), un abus,
une négligence, un accident ou une installation ou maintenance inappropriées, ni à un produit qui a été modié ou
réparé par toute personne ou entité autres que Franklin ou ses représentants autorisés.
e. Sauf mention contraire précisée dans une garantie prolongée ayant été autorisée par Franklin pour un produit
particulier ou une gamme de produits précise, cette garantie limitée ne s’applique pas aux situations causées par des
matériaux abrasifs, la corrosion causée par des conditions agressives ou une alimentation fournie à l’aide d’une tension
inappropriée.
f. En ce qui concerne les moteurs et les pompes, les conditions suivantes annulent automatiquement cette
garantie limitée :
1. Dépôts de sable ou de boue qui indiquent que le moteur a été submergé dans le sable ou la boue.
2. Dommages physiques démontrés par un arbre tordu, un boîtier cassé ou écaillé, ou des pièces de butée
tordues ou brisées.
3. Dommages causés par le sable, démontré par une usure abrasive des cannelures ou joints d’étanchéité
du moteur.
4. Dommages causés par la foudre (également appelés dommage de surtension).
5. Défaillances électriques causées par l’utilisation d’une protection non approuvée contre la surcharge.
6. Désassemblage non autorisé.
22
Remarques
23
Remarques

Form 106935101
Rev. 4
08.16
9255 Coverdale Road, Fort Wayne, IN 46809
Tel: 260.824.2900 Fax: 260.824.2909
www.franklinwater.com