548313 1 Berkeley Pentax Control Panel Specifications
: Pump 548313 1 Berkeley Pentax Control Panel Specifications 548313_1_Berkeley Pentax Control Panel Specifications pdf
Open the PDF directly: View PDF
.
Page Count: 2

1
PENTEK® Submersible Motor Controls
CB6306WS
Pentek® offers a full range of
1/2 - 5 HP models that are
interchangeable with existing
motor controls for Capacitor
Start/Induction Run (CSIR) and
Capacitor Start/Capacitor Run
(CSCR) applications. Pentek
is the professional choice in
harsh and high temperature
installations.
APPLICATIONS
■ Water systems…
for residential,
commercial, multiple housing
and farm uses, where a
submersible 3-wire motor is
used.
FEATURES
ENCLOSURE
Rugged NEMA 3R enclosure –
Suitable for indoor/outdoor use.
NEW HardBondTM Finish –
5-times more corrosion-resistant.
Multiple-size Electrical Knockouts
INTERNALS
High-load Voltage Relay
Heavy-duty Contacts
External Access to Overload
Reset CSCR
Heavy-duty Terminal
Connectors – Suitable for up to
#4 AWG wire.
Industry Standard Wiring
Connections –
Easy-to-read wiring
diagrams.
Agency Approvals –
CSA CUL
Recognized (60 Hz)

© 2014 Pentair Ltd. All Rights Reserved. CB6306WS (06/11/14)
293 WRIGHT STREET, DELAVAN, WI 53115 WWW.BERKELEYPUMPS.COM PH: 8887827483 ORDERS FAX: 8004269446
Because we are continuously improving our products and services, Pentair reserves the right to change specifications without prior notice.
PENTEK® Submersible Motor Controls
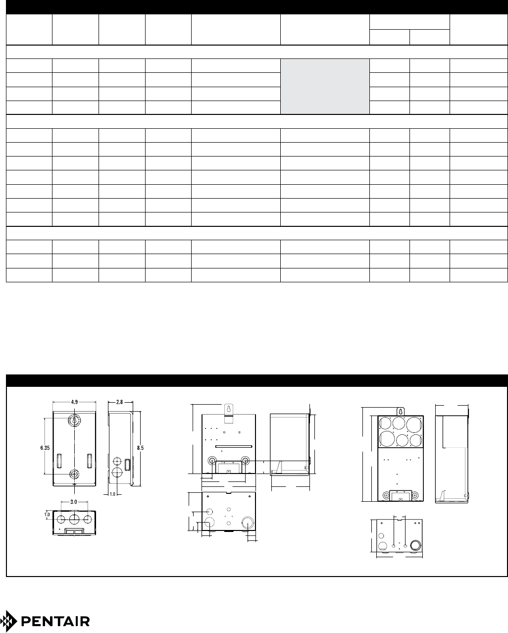
OUTLINE DIMENSIONS
SIZE A SIZE B SIZE C
Dimensions (in inches) are for estimating purposes only.
*Submersible Motor Controls are available in single and six packs. Include the suffix ”-6pk” after the catalog number if 6 packs are required.
ORDERING INFORMATION
HP kW PH Volts 60 Hz
Catalog Number 50 Hz
Catalog Number
Weight
Enclosure SizeLbs Kg
CSIR Capacitor Start/Induction Run
1/2 0.37 1115 SMC-IR0511 (-6pk)* 41.8 A
1/2 0.37 1230 SMC-IR0521 (-6pk)* 41.8 A
3/4 0.55 1230 SMC-IR0721 (-6pk)* 41.8 A
10.75 1230 SMC-IR1021 (-6pk)* 41.8 A
CSCR Capacitor Start/Capacitor Run
1/2 0.37 1230 SMC-CR0521 (-6pk)* SMC5-CR0521 52.3 A
3/4 0.55 1230 SMC-CR0721 (-6pk)* SMC5-CR0721 52.3 A
10.75 1230 SMC-CR1021 (-6pk)* SMC5-CR1021 52.3 A
1-1/2 1.1 1230 SMC-CR1521 SMC5-CR1521 73.2 B
21.5 1230 SMC-CR2021 SMC5-CR2021 73.2 B
32.2 1230 SMC-CR3021 SMC5-CR3021 73.2 B
53.7 1230 SMC-CR5021 SMC5-CR5021 83.6 B
CSCR PLUS Capacitor Start/Capacitor Run PLUS Magnetic Contactor
21.5 1230 SMC-CRP2021 SMC5-CRP2021 73.2 B
32.2 1230 SMC-CRP3021 SMC5-CRP3021 83.6 B
53.7 1230 SMC-CRP5021 SMC5-CRP5021 12 5.4 C
14.50
7.75
5.50
2.00
5.50
16.25
10.25
1.50 6.25
7.75
1.88
8.50
5.50
1.13
1.18
1.13
1.20
2.70
5.50
14.50
7.75
5.50
2.00
5.50
16.25