6847 1 Generac 5875 Owners Manual
: Pump 6847 1 Generac 5875 Owners Manual 6847_1_Generac 5875 Owners Manual pdf
Open the PDF directly: View PDF
.
Page Count: 48
- Owner's Manual
- Table of Contents
- INTRODUCTION
- SAFETY RULES
- General Information
- 1.1 UNPACKING/INSPECTION
- 1.2 PROTECTION SYSTEMS
- 1.3 NEC REQUIREMENT FOR ARC FAULT CIRCUIT INTERRUPTION BREAKER FOR BEDROOMS
- 1.4 EMISSION INFORMATION
- 1.5 THE GENERATOR
- 1.6 SPECIFICATIONS
- 1.7 READY TO RUN
- 1.8 FUEL REQUIREMENTS AND RECOMMENDATIONS
- 1.9 FUEL CONSUMPTION
- 1.10 RECONFIGURING THE FUEL SYSTEM
- 1.11 LOCATION
- 1.12 BATTERY REQUIREMENTS
- 1.13 BATTERY INSTALLATION
- 1.14 THE BATTERY
- 1.15 BATTERY CHARGER
- Post Installation Start-up and Adjustments
- Operation
- Maintenance
- 4.1 FUSE
- 4.2 CHECKING THE ENGINE OIL LEVEL
- 4.3 CHANGING THE ENGINE OIL
- 4.4 CHANGING THE ENGINE AIR CLEANER
- 4.5 SPARK PLUG(S)
- 4.6 BATTERY MAINTENANCE
- 4.7 ADJUSTING GH-410/GT-530/990/999 VALVE CLEARANCE
- 4.8 COOLING SYSTEM
- 4.9 ATTENTION AFTER SUBMERSION
- 4.10 CORROSION PROTECTION
- 4.11 OUT OF SERVICE PROCEDURE
- 4.12 SERVICE SCHEDULE
- Troubleshooting
- Appendix
- Notes
- Installation Diagrams
- Warranty
- Part No. 0H8358 Revision F (05/09/11) Printed in U.S.A.
- Manual del propietario
- Tabla de contenidos
- INTRODUCCIÓN
- REGLAS DE SEGURIDAD
- Información General
- 1.1 DESEMPAQUE/INSPECCIÓN
- 1.2 SISTEMAS DE PROTECCIÓN
- 1.3 REQUERIMIENTO DE NEC PARA INTERRUPTOR DE CIRCUITO POR FALLA DE ARCO PARA DORMITORIOS
- 1.4 INFORMACIÓN DE EMISIONES
- 1.5 EL GENERADOR
- 1.6 ESPECIFICACIONES
- 1.7 LISTO PARA FUNCIONAR
- 1.8 REQUERIMIENTOS DE COMBUSTIBLE Y RECOMENDACIONES
- 1.9 CONSUMO DE COMBUSTIBLE
- 1.10 RECONFIGURACIÓN DEL SISTEMA DE COMBUSTIBLE
- 1.11 UBICACIÓN
- 1.12 REQUERIMIENTOS DE BATERÍA
- 1.13 INSTALACIÓN DE LA BATERÍA
- 1.14 LA BATERÍA
- 1.15 CARGADOR DE BATERÍAS
- Arranque luego de la instalación y ajustes
- Operación
- Mantenimiento
- 4.1 FUSIBLE
- 4.2 REVISAR EL NIVEL DE ACEITE DEL MOTOR
- 4.3 CAMBIO DE ACEITE DE MOTOR
- 4.4 CAMBIO DEL LIMPIADOR DE AIRE DEL MOTOR
- 4.5 BUJIA(S)
- 4.6 MANTENIMIENTO DE LA BATERÍA
- 4.7 AJUSTANDO LA CLARIDAD DE LA VÁLVULA ING GH-410/GT-530/990/999
- 4.8 SISTEMA DE ENFRIAMIENTO
- 4.9 ATENCIÓN LUEGO DE LA SUMERSIÓN
- 4.10 PROTECCIÓN CONTRA CORROSIÓN
- 4.11 PROCEDIMIENTO FUERA DE SERVICIO
- 4.12 AGENDA DE MANTENIMIENTO
- Detección de fallas
- Apéndice
- Garantía
- Parte No. 0H8358 Revisión F (09/05/11) Impreso en los EE.UU.
- Manuel d'entretien
- Table des matières
- INTRODUCTION
- RÈGLES DE SÉCURITÉ
- Informations générales
- 1.1 DÉBALLAGE/ INSPECTION
- 1.2 SYSTÈMES DE PROTECTION
- 1.3 EXIGENCE DU NEC EN MATIÈRE DE DISJONCTEUR D'INTERRUPTION DE CIRCUIT DE DÉFAUT D'ARC POUR LES PIÈCES HABITABLES
- 1.4 INFORMATIONS RELATIVES AUX ÉMISSIONS
- 1.5 LE GÉNÉRATEUR
- 1.6 CARACTÉRISTIQUES TECHNIQUES
- 1.7 PRÊT À FONCTIONNER
- 1.8 EXIGENCES ET RECOMMANDATIONS EN TERMES DE CARBURANT
- 1.9 CONSOMMATION DE CARBURANT
- 1.10 RECONFIGURATION DU SYSTÈME DE CARBURANT
- 1.11 EMPLACEMENT
- 1.12 EXIGENCES DE LA BATTERIE
- 1.13 INSTALLATION DE LA BATTERIE
- 1.14 LA BATTERIE
- 1.15 CHARGEUR DE BATTERIE
- Démarrage et ajustements après l'installation
- Fonctionnement
- Maintenance
- 4.1 FUSIBLE
- 4.2 VÉRIFICATION DU NIVEAU D'HUILE DU MOTEUR
- 4.3 CHANGEMENT DE L'HUILE DU MOTEUR
- 4.4 CHANGEMENT DU FILTRE À AIR DU MOTEUR
- 4.5 BOUGIE(S) D'ALLUMAGE
- 4.6 ENTRETIEN DE LA BATTERIE
- 4.7 RÉGLAGE DU JEU DES SOUPAPES GH-410/GT-530/990/999
- 4.8 SYSTÈME DE REFROIDISSEMENT
- 4.9 PRÉCAUTION APRÈS IMMERSION
- 4.10 PROTECTION CONTRE LA CORROSION
- 4.11 PROCÉDURE DE MISE HORS SERVICE
- 4.12 CALENDRIER D'ENTRETIEN
- Dépannage
- Annexe
- Garantie
- Parte No. 0H8358 Revisión F (09/05/11) Impreso en los EE.UU.

8, 10, 14, 17 & 20kW Air-cooled,
Automatic Standby Generators
Owner's Manual
L
I
S
T
E
D
CU
S

Introduction ................................................. 1
Read This Manual Thoroughly ................................................1
Safety Rules ................................................. 1
Contents ...............................................................................1
Operation and Maintenance....................................................1
How to Obtain Service ...........................................................1
Standards Index .....................................................................3
General Information .................................... 4
1.1 Unpacking/Inspection .....................................................4
1.2 Protection Systems ........................................................4
1.3 NEC Requirement for Arc Fault Circuit
Interruption Breaker for Bedrooms ..................................4
1.4 Emission Information......................................................5
1.5 The Generator ................................................................6
1.6 Specifications ................................................................7
1.7 Ready to Run .................................................................8
1.8 Fuel Requirements and Recommendations ......................8
1.9 Fuel Consumption ..........................................................8
1.10 Reconfiguring the Fuel System ........................................9
1.11 Location .......................................................................10
1.12 Battery Requirements ...................................................11
1.13 Battery Installation ........................................................11
1.14 The Battery ..................................................................13
1.15 Battery Charger ............................................................13
Post Installation Start-up and
Adjustments ............................................... 14
2.1 Activate the Generator ..................................................14
2.2 Before Initial Startup .....................................................14
2.3 Check Transfer Switch Operation ..................................14
2.4 Electrical Checks ..........................................................14
2.5 Generator Tests Under Load ..........................................16
2.6 Checking Automatic Operation ......................................16
Operation ................................................... 17
3.1 Control Panel Interface .................................................17
3.2 Automatic Transfer Operation ........................................18
3.3 Sequence of Automatic Operation .................................18
3.4 Manual Transfer Operation ............................................19
3.5 Side Compartment .......................................................20
3.6 Protection Systems ......................................................20
Maintenance .............................................. 22
4.1 Fuse .............................................................................22
4.2 Checking the Engine Oil Level .......................................22
4.3 Changing the Engine Oil ................................................23
4.4 Changing the Engine Air Cleaner ...................................23
4.5 Spark Plug(s) ...............................................................24
4.6 Battery Maintenance .....................................................25
4.7 Adjusting GH-410/GT-530/990/999 Valve Clearance ......25
4.8 Cooling System ............................................................26
4.9 Attention After Submersion ...........................................26
4.10 Corrosion Protection.....................................................26
4.11 Out of Service Procedure ..............................................26
4.12 Service Schedule .........................................................28
Troubleshooting ........................................ 29
5.1 Troubleshooting Guide ..................................................29
Appendix .................................................... 30
6.1 Menu System Navigation ..............................................30
Notes .......................................................... 32
Installation Diagrams ................................33
Warranty ..................................................... 38
Manual del propietario ....................43
Manuel d'entretien ...........................81
Table of Contents

1
INTRODUCTION
Thank you for purchasing this compact, high performance, air-cooled,
engine-driven generator. It is designed to automatically supply electrical
power to operate critical loads during a utility power failure.
This unit is factory installed in an all-weather, metal enclosure and is
intended exclusively for outdoor installation. This generator will operate
using either vapor withdrawn liquid propane (LP) or natural gas (NG).
NOTE:
This generator is suitable for supplying typical residential loads such
as Induction Motors (sump pumps, refrigerators, air conditioners,
furnaces, etc.), Electronic Components (computer, monitor, TV, etc.),
Lighting Loads and Microwaves.
READ THIS MANUAL THOROUGHLY
If any portion of this manual is not understood, contact the nearest Dealer
for starting, operating and servicing procedures.
SAFETY RULES
Throughout this publication, and on tags and decals affixed to the genera-
tor, DANGER, WARNING, CAUTION and NOTE blocks are used to alert
personnel to special instructions about a particular operation that may be
hazardous if performed incorrectly or carelessly. Observe them carefully.
Their definitions are as follows:
INDICATES A HAZARDOUS SITUATION OR ACTION WHICH, IF
NOT AVOIDED, WILL RESULT IN DEATH OR SERIOUS INJURY.
Indicates a hazardous situation or action which, if not
avoided, could result in death or serious injury.
Indicates a hazardous situation or action which, if not
avoided, could result in minor or moderate injury.
NOTE:
Notes contain additional information important to a procedure
and will be found within the regular text body of this manual.
These safety warnings cannot eliminate the hazards that they
indicate. Common sense and strict compliance with the special
instructions while performing the action or service are essential to
preventing accidents.
Four commonly used safety symbols accompany the DANGER,
WARNING and CAUTION blocks. The type of information each
indicates is as follows:
n This symbol points out important safety information that,
if not followed, could endanger personal safety and/or
property of others.
This symbol points out potential explosion hazard.
This symbol points out potential fire hazard.
This symbol points out potential electrical shock hazard.
The operator is responsible for proper and safe use of the equipment. The
manufacturer strongly recommends that the operator read this Owner's
Manual and thoroughly understand all instructions before using this
equipment. The manufacturer also strongly recommends instructing other
users to properly start and operate the unit. This prepares them if they
need to operate the equipment in an emergency.
CONTENTS
This manual contains pertinent owner’s information for these models:
7 kW NG, 8 kW LP, single-cylinder GH-410 Engine•
9 kW NG, 10 kW LP, V-twin GT-530 Engine•
13 kW NG, 13 kW LP, V-twin GT-990 Engine•
13 kW NG, 14 kW LP, V-twin GT-990 Engine•
16 kW NG, 16 kW LP, V-twin GT-990 Engine•
16 kW NG, 17 kW LP, V-twin GT-990 Engine•
18 kW NG, 20 kW LP, V-twin GT-999 Engine•
OPERATION AND MAINTENANCE
It is the operator's responsibility to perform all safety checks, to make sure
that all maintenance for safe operation is performed promptly, and to have
the equipment checked periodically by a Dealer. Normal maintenance ser-
vice and replacement of parts are the responsibility of the owner/operator
and, as such, are not considered defects in materials or workmanship
within the terms of the warranty. Individual operating habits and usage
contribute to the need for maintenance service.
Proper maintenance and care of the generator ensures a minimum number
of problems and keep operating expenses at a minimum. See a Dealer for
service aids and accessories.
HOW TO OBTAIN SERVICE
When the generator requires servicing or repairs, contact a Dealer for
assistance. Service technicians are factory-trained and are capable of
handling all service needs.
When contacting a Dealer about parts and service, always supply the
complete model number and serial number of the unit as given on its data
decal, which is located on the generator. See section "The Generator" for
decal location.
Model No. _________________ Serial No. ______________
Data Label Sample
Safety Rules

2
Study these SAFETY RULES carefully before installing, operating
or servicing this equipment. Become familiar with this Owner’s
Manual and with the unit. The generator can operate safely, effi-
ciently and reliably only if it is properly installed, operated and
maintained. Many accidents are caused by failing to follow simple
and fundamental rules or precautions.
The manufacturer cannot anticipate every possible circumstance
that might involve a hazard. The warnings in this manual, and on
tags and decals affixed to the unit are, therefore, not all-inclusive. If
using a procedure, work method or operating technique the manu-
facturer does not specifically recommend, ensure that it is safe for
others. Also make sure the procedure, work method or operating
technique utilized does not render the generator unsafe.
n Despite the safe design of this generator,
operating this equipment imprudently, neglect-
ing its maintenance or being careless can
cause possible injury or death. Permit only
responsible and capable persons to install,
operate and maintain this equipment.
Potentially lethal voltages are generated by
these machines. Ensure all steps are taken to
render the machine safe before attempting to
work on the generator.
n Parts of the generator are rotating and/or
hot during operation. Exercise care near run-
ning generators.
n Installation must always comply with appli-
cable codes, standards, laws and regula-
tions.
n A running generator gives off carbon mon-
oxide, and odorless, colorless poison gas.
Breathing in carbon monoxide can cause
headaches, fatigue, diziness, nausea, vomit-
ting, confusion, fainting, siezures or death.
GENERAL HAZARDS
For safety reasons, the manufacturer recommends that this equip-• ment be installed, serviced and repaired by a Service Dealer or
other competent, qualified electrician or installation technician who
is familiar with applicable codes, standards and regulations. The
operator also must comply with all such codes, standards and
regulations.
The engine exhaust fumes contain carbon monoxide, which • can be DEADLY. This dangerous gas, if breathed in sufficient
concentrations, can cause unconsciousness or even death.
Do NOT alter or add to the exhaust system or do anything that
might render the system unsafe or in noncompliance with appli-
cable codes and standards.
Install a battery operated carbon monoxide alarm indoors, • according to manufacturer's instructions/recommendations.
Adequate, unobstructed flow of cooling and ventilating air is • critical to correct generator operation. Do not alter the instal-
lation or permit even partial blockage of ventilation provisions,
as this can seriously affect safe operation of the generator. The
generator MUST be installed and operated outdoors only.
Keep hands, feet, clothing, etc., away from drive belts, fans, • and other moving or hot parts. Never remove any drive belt or
fan guard while the unit is operating.
When working on this equipment, remain alert at all times. • Never work on the equipment when physically or mentally
fatigued.
Inspect the generator regularly, and contact the nearest Dealer • for parts needing repair or replacement.
Before performing any maintenance on the generator, discon-• nect its battery cables to prevent accidental start up. Disconnect
the cable from the battery post indicated by a NEGATIVE, NEG
or (–) first, then remove the POSITIVE, POS or (+) cable. When
reconnecting the cables, connect the POSITIVE cable first, the
NEGATIVE cable last.
Never use the generator or any of its parts as a step. Stepping • on the unit can stress and break parts, and may result in dan-
gerous operating conditions from leaking exhaust gases, fuel
leakage, oil leakage, etc.
EXHAUST HAZARDS
Generator engine exhaust contains DEADLY carbon monox-• ide, an odorless, colorless poisonous gas. Breathing carbon
monoxide can cause: dizziness, throbbing temples, nausea,
muscular twitching, headache, vomiting, weakness and sleepi-
ness, inability to think clearly, fainting, unconsciousness or
even death. If you experience any carbon monoxide poisoning
symptoms, move into fresh air and immediately seek medical
attention.
Never operate the generator set with the vehicle inside any • garage or other enclosed area.
ELECTRICAL HAZARDS
All generators covered by this manual produce dangerous • electrical voltages and can cause fatal electrical shock. Utility
power delivers extremely high and dangerous voltages to the
transfer switch as does the standby generator when it is in
operation. Avoid contact with bare wires, terminals, connec-
tions, etc., while the unit is running. Ensure all appropriate
covers, guards and barriers are in place, secured and/or locked
before operating the generator. If work must be done around
an operating unit, stand on an insulated, dry surface to reduce
shock hazard.
Do not handle any kind of electrical device while stand-• ing in water, while barefoot, or while hands or feet are wet.
DANGEROUS ELECTRICAL SHOCK MAY RESULT.
n SAVE THESE INSTRUCTIONS – The manufacturer suggests that these rules for safe operation be copied and posted near the unit’s
installation site. Safety should be stressed to all operators and potential operators of this equipment.
Safety Rules

3
The National Electrical Code (NEC) requires the frame and external • electrically conductive parts of the generator to be connected to
an approved earth ground. Local electrical codes also may require
proper grounding of the generator electrical system.
After installing this home standby electrical system, the genera-• tor may crank and start at any time without warning. When this
occurs, load circuits are transferred to the STANDBY (genera-
tor) power source. To prevent possible injury if such a start and
transfer occur, always set the generator’s AUTO/OFF/MANUAL
switch to its OFF position before working on equipment and
remove the 15A fuse from the generator control panel.
In case of accident caused by electric shock, immediately shut • down the source of electrical power. If this is not possible,
attempt to free the victim from the live conductor. AVOID DIRECT
CONTACT WITH THE VICTIM. Use a nonconducting implement,
such as a dry rope or board, to free the victim from the live
conductor. If the victim is unconscious, apply first aid and get
immediate medical help.
Never wear jewelry when working on this equipment. Jewelry • can conduct electricity resulting in electric shock, or may get
caught in moving components causing injury.
FIRE HAZARDS
For fire safety, the generator must be installed and maintained • properly. Installation must always comply with applicable
codes, standards, laws and regulations. Adhere strictly
to local, state and national electrical and building codes.
Comply with regulations the Occupational Safety and Health
Administration (OSHA) has established. Also, ensure that the
generator is installed in accordance with the manufacturer’s
instructions and recommendations. Following proper installa-
tion, do nothing that might alter a safe installation and render
the unit in noncompliance with the aforementioned codes,
standards, laws and regulations.
Keep a fire extinguisher near the generator at all times. • Extinguishers rated “ABC” by the National Fire Protection
Association are appropriate for use on the standby electric
system. Keep the extinguisher properly charged and be familiar
with its use. Consult the local fire department with any ques-
tions pertaining to fire extinguishers.
EXPLOSION HAZARDS
Do not smoke around the generator. Wipe up any fuel or oil • spills immediately. Ensure that no combustible materials are left
in the generator compartment, or on or near the generator, as
FIRE or EXPLOSION may result. Keep the area surrounding the
generator clean and free from debris.
Gaseous fluids such as natural gas and liquid propane (LP) • gas are extremely EXPLOSIVE. Install the fuel supply system
according to applicable fuel-gas codes. Before placing the
home standby electric system into service, fuel system lines
must be properly purged and leak tested according to applica-
ble code. After installation, inspect the fuel system periodically
for leaks. No leakage is permitted.
STANDARDS INDEX
In the absence of pertinent standards, codes, regulations and
laws, the published information listed below may be used for
installation guidance for this equipment.
1. NFPA No. 37, STATIONARY COMBUSTION ENGINES AND
GAS TURBINES, available from the National Fire Protection
Association, 470 Atlantic Avenue, Boston, MA 02210.
2. NFPA No. 76A, ESSENTIAL ELECTRICAL SYSTEMS FOR
HEALTH CARE FACILITIES, available same as Item 1.
3. NFPA No. 54, NATIONAL FUEL GAS CODE, available same as
Item 1.
4. NFPA No. 58, AMERICAN NATIONAL STANDARD FOR
STORAGE AND HANDLING OF LIQUEFIED PETROLEUM GAS,
available same as Item 1.
5. NFPA No. 70, NFPA HANDBOOK OF NATIONAL ELECTRIC
CODE, available same as Item 1.
6. Article X, NATIONAL BUILDING CODE, available from the
American Insurance Association, 85 John Street, New York,
N.Y. 10038.
7. AGRICULTURAL WIRING HANDBOOK, available from the Food
and Energy Council, 909 University Avenue, Columbia, MO
65201.
8. ASAE EP-3634, INSTALLATION AND MAINTENANCE OF
FARM STANDBY ELECTRICAL SYSTEMS, available from the
American Society of Agricultural Engineers, 2950 Niles Road,
St. Joseph, MI 49085.
9. NFPA No. 30, FLAMMABLE AND COMBUSTIBLE LIQUIDS
CODE, available same as Item 1.
CALIFORNIA PROPOSITION 65 WARNING
Engine exhaust and some of its constituents are known
to the State of California to cause cancer, birth defects
and other reproductive harm.
CALIFORNIA PROPOSITION 65 WARNING
This product contains or emits chemicals known to the
State of California to cause cancer, birth defects and
other reproductive harm.
Safety Rules

n Only qualified electricians or contractors
should attempt such installations, which must
comply strictly with applicable codes, stan-
dards and regulations.
1.1 UNPACKING/INSPECTION
After unpacking, carefully inspect the contents for damage.
This standby generator set is ready for installation with a factory • supplied and pre-mounted base pad and has a weather protec-
tive enclosure that is intended for outdoor installation only.
This UL listed standby generator set may be packaged with an • automatic transfer switch with built in load center. The combi-
nation transfer switch and load center is pre-wired with a two
foot and 30 foot conduit. Circuit breakers for emergency circuit
connections are included (if equipped).
This UL listed, 2-pole switch is rated at 100 • or 200 AC amperes
at 250 volts maximum. The 100 Amp transfer switch is for
indoor use only. The 200 Amp transfer switch is for indoor/
outdoor use (if equipped).
If this generator is used to power electrical load
circuits normally powered by a utility power
source, it is required by code to install a trans-
fer switch. The transfer switch must effectively
isolate the electrical system from the utility
distribution system when the generator is oper-
ating (NEC 700, 701 & 702). Failure to isolate an
electrical system by such means will result in
damage to the generator and also may result in
injury or death to utility power workers due to
backfeed of electrical energy.
If any loss or damage is noted at time of delivery, have the
person(s) making the delivery note all damage on the freight bill
or affix their signature under the consignor's memo of loss or
damage.
If a loss or damage is noted after delivery, separate the damaged
materials and contact the carrier for claim procedures.
“Concealed damage” is understood to mean damage to the con-
tents of a package that is not in evidence at the time of delivery,
but is discovered later.
To properly open the roof, press down on the center top lip and
release the latch. If pressure is not applied from the top, the roof
may appear stuck. Always verify that the side lock is unlocked
before attempting to lift the roof.
1.2 PROTECTION SYSTEMS
Unlike an automobile engine, the generator may have to run for
long periods of time with no operator present to monitor engine
conditions. For that reason, the engine is equipped with the fol-
lowing systems that protect it against potentially damaging condi-
tions:
1. Low Oil Pressure Sensor 6. Low Battery
2. High Temperature Sensor 7. Under-frequency
3. Overcrank 8. Undervoltage
4. Overspeed 9. Overvoltage
5. RPM Sensor 10. Internal Failure
There are readouts on the control panel to notify personnel that
one of these failures has occurred. There is a Status message on
the display that displays when all of the conditions described in the
"Ready to Run" section are true.
1.3 NEC REQUIREMENT
FOR ARC FAULT CIRCUIT
INTERRUPTION BREAKER
FOR BEDROOMS
In 2001, the National Electric Code (NEC) introduced a requirement
for new construction. This new requirement indicates the need for
Arc Fault Circuit Interrupters to be used to protect the complete
branch circuit that feeds a dwelling bedroom. The actual NEC
requirement is indicated below.
1.3.1 SECTION 210.12 ARC FAULT CIRCUIT
INTERRUPTER PROTECTION
1. Definition: An arc fault circuit interrupter is a device intended
to provide protection from the effects of arc faults by recog-
nizing characteristics unique to arcing and by functioning to
de-energize the circuit when an arc fault is detected.
2. Dwelling Unit Bedrooms: All branch circuits that supply 125
volt, single-phase, 15 and 20 ampere outlets installed in
dwelling unit bedrooms shall be protected by an arc fault cir-
cuit interrupter listed to provide protection of the entire branch
circuit.
Section 210.12 requires that AFCI protection be provided on branch
circuits that supply outlets (receptacle, lighting, etc.) in dwell-
ing bedrooms. The requirement is limited to 15 and 20 ampere,
125 volt circuits. There is no prohibition against providing AFCI
protection on other circuits or in locations other than bedrooms.
Because circuits are often shared between a bedroom and other
areas such as closets and hallways, providing AFCI protection on
the complete circuit would comply with 210.12.
4
General Information

5
If during the installation of the home standby system the decision
is made to provide back up power to a bedroom branch circuit,
then the circuit breaker in the transfer switch should be replaced
with an Arc Fault Circuit Interrupter.
It is most important that breakers only be switched like for like.
For instance, if replacing a 15A breaker, it MUST be replaced with
a 15A AFCI breaker. Likewise, a 20A breaker MUST be replaced
with a 20A AFCI.
These AFCI breakers are available at the nearest hardware store.
Item # Description
Q115AF 15A Single Pole AFCI
Q120AF 20A Single Pole AFCI
1.4 EMISSION INFORMATION
The Environmental Protection Agency requires that this generator
complies with exhaust emission standards. This generator is certi-
fied to meet the applicable EPA emission levels. Additional infor-
mation regarding the requirements set by the EPA is as follows:
The generator is certified for use as a stationary engine for standby
power generation. Any other use may be a violation of federal
and/or local laws. It is important that to follow the maintenance
specifications in the "Maintenance" section to ensure that the
engine complies with the applicable emission standards for the
duration of the engine’s life. This engine is certified to operate on
Liquid Propane fuel and pipeline Natural Gas. The emission control
system on the generator consists of the following:
Fuel Metering System•
Carburetor/mixer assembly•
Fuel regulator•
Air Induction System•
Intake pipe/manifold•
Air cleaner•
Ignition System•
Spark plug•
Ignition module•
The Emissions Compliance Period referred to on the Emissions
Compliance Label indicates the number of operating hours for
which the engine has been shown to meet Federal emission
requirements. See the table below to determine the compliance
period for the generator. The displacement of the generator is listed
on the Emissions Compliance Label.
Displacement Category Compliance Period
< 66 cc
A 300 Hours
B 125 Hours
C 50 Hours
66 cc -
< 225 cc
A 500 Hours
B 250 Hours
C 125 Hours
225 cc
A 1000 Hours
B 500 Hours
C 250 Hours
General Information

6
1.5 THE GENERATOR
Data Label
(see sample)
Oil
Dipstick
Exhaust
Enclosure
Composite Base Oil Filter Battery Compartment
Fuel
Regulator
Fuel Inlet
(back)
Air Filter
Circuit
Breaker
Control
Panel
Data Label
(see sample)
Oil
Dipstick
Exhaust
Enclosure
Composite Base Oil Filter Battery Compartment
Fuel
Regulator
Fuel Inlet
(back)
Air Filter Circuit
Breakers
Control
Panel
Figure 1.3 – 13, 14, 16, 17 and 20kW, V-twin,
GT-990/GT-999 Engine (door removed)
Figure 1.1 – 8kW, Single Cylinder, GH-410 Engine (door
removed)
Data Label
(see sample)
Oil
Dipstick
Exhaust
Enclosure
Composite Base Oil Filter Battery Compartment
Fuel
Regulator
Fuel Inlet
(back)
Air
Filter
Circuit
Breaker
Control
Panel
Figure 1.2 – 10kW, V-twin, GT-530 Engine
(door removed)
Data Label Sample
General Information

7
1.6 SPECIFICATIONS
1.6.1 GENERATOR
Model 8kW 10kW 13kW 14kW 16kW 17kW 20kW
Rated Voltage 240
Rated Maximum Load Current
(Amps) at 240 Volts (LP)* 33.3 41.6 54.1 58.3 66.6 70.8 83.3
Main Circuit Breaker 35 Amp 45 Amp 55 Amp 60 Amp 65 Amp 65 Amp 100 Amp
Circuits** 50A, 240V - - 1 - 1 1 -
40A, 240V - 1 1 1 1 1 -
30A, 240V 1 1 - - - - -
20A, 240V 1 - 1 1 1 1 -
20A, 120V 3 3 4 6 5 5 -
15A, 120V 3 5 4 4 5 5 -
Phase 1
Number of Rotor Poles 2
Rated AC Frequency 60 Hz
Battery Requirement
Group 26R, 12
Volts and 350 CCA
Minimum
Group 26R, 12 Volts and 525 CCA Minimum
Weight (unit only in lbs.) 340 387 439 439 439 455/421 450
Enclosure Steel Steel Steel Steel Steel Steel/Aluminum Aluminum
Normal Operating Range
This unit is tested in accordance to UL 2200 standards with an operating temperature of 20 °F (-29 °C) to 122 °F. (50 °C). For areas where temperatures fall
below 32 °F (0 °C), a cold weather kit is highly recommended. When operated above 77º F (25º C) there may be a decrease in engine power. (Please reference the
engine specifications section).
These generators are rated in accordance with UL2200, Safety Standard for Stationary Engine Generator Assemblies; and CSA-C22.2 No. 100-04 Standard for Motors and Generators.
* Natural Gas ratings will depend on specific fuel Btu content. Typical derates are between 10-20% off the LP gas rating.
** Circuits to be moved must be protected by same size breaker. For example, a 15 amp circuit in the main panel must be a 15 amp circuit in the transfer switch.
1.6.2 ENGINE
Model 8 kW 10 kW 13/14/16/17 kW 20 kW
Type of Engine GH-410 GT-530 GT-990 GT-999
Number of Cylinders 1 2 2 2
Rated Horsepower @ 3,600 rpm* 14.8 18 32 36
Displacement 410cc 530cc 992cc 999cc
Cylinder Block Aluminum w/Cast Iron Sleeve
Valve Arrangement Overhead Valves
Ignition System Solid-state w/Magneto
Recommended Spark Plug RC14YC BPR6HS RC14YC RC12YC
Spark Plug Gap 0.76 mm (0.030 inch) 0.76 mm (0.030 inch) 1.02 mm (0.040 inch) 0.76 mm (0.030 inch)
Compression Ratio 8.6:1 9.5:1 9.5:1 9.5:1
Starter 12 VDC
Oil Capacity Including Filter Approx. 1.5 Qts Approx. 1.7 Qts Approx. 1.9 Qts Approx. 1.9 Qts
Recommended Oil Filter Part # 070185F
Recommended Air Filter Part # 0G3332 Part # 0E9581 Part # 0C8127 Part # 0G5894
Operating RPM 3,600
* Engine power is subject to and limited by such factors as fuel Btu content, ambient temperature and altitude. Engine power decreases about 3.5 percent for each 1,000 feet above sea level; and
also will decrease about 1 percent for each 6 C (10 F) above 16 C (60 F) ambient temperature.
General Information

1.7 READY TO RUN
The "Ready to Run" on the display is ready when all of the following
conditions are true:
1. The AUTO/OFF/MANUAL switch is set to the AUTO position.
2. The utility voltage being supplied to the unit is being sensed
by the PCB. If the utility sense voltage is not connected to the
unit or if it is below approximately 150-160 volts AC, then
the system will display the message "No Utility Present". This
indicates that if the AUTO/OFF/MANUAL switch is placed in
the Auto position, the generator will start.
3. No alarms are present, for example, low oil pressure, high
temperature, etc.
1.8 FUEL REQUIREMENTS AND
RECOMMENDATIONS
With LP gas, use only the vapor withdrawal system. This type of
system uses the vapors formed above the liquid fuel in the storage
tank.
The engine has been fitted with a fuel carburetion system that
meets the specifications of the 1997 California Air Resources
Board for tamper-proof dual fuel systems. The unit will run on
natural gas or LP gas, but it has been factory set to run on natural
gas. Should the primary fuel need to be changed to LP gas, the
fuel system needs to be reconfigured. See the reconfiguring the
Fuel System section for instructions on reconfiguration of the fuel
system.
Recommended fuels should have a Btu content of at least 1,000
Btus per cubic foot for natural gas; or at least 2,520 Btus per
cubic foot for LP gas. Ask the fuel supplier for the Btu content of
the fuel.
Required fuel pressure for natural gas is five (5) inches to seven
(7) inches water column (0.18 to 0.25 psi); and for liquid pro-
pane, 10 inches to 12 inches of water column (0.36 to 0.43 psi).
The primary regulator for the propane supply is NOT INCLUDED
with the generator.
NOTE:
All pipe sizing, construction and layout must comply with NFPA
54 for natural gas applications and NFPA 58 for liquid propane
applications. Once the generator is installed, verify that the fuel
pressure NEVER drops below four (4) inches water column for
natural gas or 10 inches water column for liquid propane.
Prior to installation of the generator, the installer should consult
local fuel suppliers or the fire marshal to check codes and regula-
tions for proper installation. Local codes will mandate correct rout-
ing of gaseous fuel line piping around gardens, shrubs and other
landscaping to prevent any damage.
Special considerations should be given when installing the unit
where local conditions include flooding, tornados, hurricanes,
earthquakes and unstable ground for the flexibility and strength of
piping and their connections.
Use an approved pipe sealant or joint compound on all threaded
fitting.
All installed gaseous fuel piping must be purged and leak tested
prior to initial start-up in accordance with local codes, standards
and regulations.
1.9 FUEL CONSUMPTION
Unit Nat. Gas LP Vapor
1/2 Load Full Load 1/2 Load Full Load
7/8 kW 77 140 0.94/34 1.68/62
9/10 kW 102 156 1.25/46 1.93/70
13/13 kW 156 220 1.55/57 2.18/80
13/14 kW 156 220 1.56/58 2.30/84
16/16 kW 183 261 1.59/58 2.51/91
16/17 kW 183 261 1.61/59 2.57/94
18/20 kW 206 294 1.89/69 2.90/106
* Natural gas is in cubic feet per hour.
** LP is in gallons per hour/cubic feet per hour.
*** Values given are approximate.
Verify that gas meter is capable of providing enough fuel flow to
include household appliances.
1.9.1 BTU FLOW REQUIREMENTS - NATURAL GAS
BTU flow required for each unit based on 1000 BTU per cubic
foot.
7kW — 140,000 BTU/Hour•
9kW — 156,000 BTU/Hour•
13kW — 220,000 BTU/Hour•
16kW — 261,000 BTU/Hour•
18kW — 294,000 BTU/Hour•
Gaseous fuels such as natural gas and liquid
propane (LP) gas are highly explosive. Even
the slightest spark can ignite such fuels and
cause an explosion. No leakage of fuel is
permitted. Natural gas, which is lighter than
air, tends to collect in high areas. LP gas is
heavier than air and tends to settle in low
areas.
NOTE:
A minimum of one approved manual shut-off valve must be
installed in the gaseous fuel supply line. The valve must be eas-
ily accessible. Local codes determine the proper location.
8
General Information

9
1.10 RECONFIGURING THE FUEL
SYSTEM
1.10.1 8 KW, 410CC ENGINE
To reconfigure the fuel system from NG to LP, follow these steps
(Figure 1.4):
NOTE:
The primary regulator for the propane supply is NOT INCLUDED
with the generator. A fuel pressure of 10 to 12 inches of water
column (0.36 to 0.43 psi) to the fuel inlet of the generator MUST
BE SUPPLIED.
1. Turn off the main gas supply (if connected).
2. Open the roof and remove the door.
3. Remove the battery (if installed).
4. Take the plastic T-handle fuel selector in the poly bag supplied
with the generator.
5. Locate the selector knob on the air box cover, behind the
yellow air filter door and power bulge. The unit comes from
the factory in the NG (Natural Gas) position. Grasping the
T-handle, insert the pin end into the hole in the selector knob
and pull out to overcome spring pressure and then twist
clockwise 90 degrees and allow the selector to return in once
aligned with the LP (Liquid Propane) position.
6. Save this tool with the Owner's Manual.
7. Install the battery, door and close the roof.
8. Reverse the procedure to convert back to natural gas.
Figure 1.4 – Fuel Selector
NOTE:
Use an approved pipe sealant or joint compound on all threaded
fittings to reduce the possibility of leakage.
1.10.2 10, 13, 14, 16, 17 AND 20KW, V-TWIN ENGINES
To reconfigure the fuel system from NG to LP, follow these steps:
NOTE:
The primary regulator for the propane supply is NOT INCLUDED
with the generator. A fuel pressure of 10 to 12 inches of water
column (0.36 to 0.43 psi) to the fuel inlet of the generator MUST
BE SUPPLIED.
1. Open the roof.
2. For 10kW units: Loosen clamp and slide back the air inlet
hose.
Slide fuel selector on carburetor out towards the back of the • enclosure (Figures 1.5 and 1.6).
Return the inlet hose and tighten clamp securely.•
For 13, 14, 16, 17 and 20kW units: remove the air cleaner
cover.
Slide the selector lever out towards the back of the enclosure • (Figures 1.7 and 1.8).
Return the air cleaner cover and tighten the two thumb • screws.
Figure 1.5 - 10kW, GT-530 (Inlet Hose Slid Back)
Fuel Selection
Lever - "In"
Position for
Natural Gas
Fuel
Figure 1.6 - 10kW, GT-530 (Inlet Hose Slid Back)
Fuel Selection
Lever - "Out"
Position for
Liquid Propane
(Vapor) Fuel
General Information

10
3. Close the roof.
4. Reverse the procedure to convert back to natural gas.
Figure 1.7 - 13, 14, 16, 17, & 20kW,
GT-990/GT-999 (Airbox Cover Removed)
Fuel Selection Lever - "In" Position for Natural Gas Fuel
Figure 1.8 - 13, 14, 16, 17, & 20kW,
GT-990/GT-999 (Airbox Cover Removed)
Fuel Selection Lever - "Out" Position for Liquid Propane
(Vapor) Fuel
1.11 LOCATION
n The engine exhaust fumes contain carbon
monoxide, which can be DEADLY. This dan-
gerous gas, if breathed in sufficient con-
centrations, can cause unconsciousness or
even death. This generator must be installed
properly, in strict compliance with applicable
codes and standards. Following installation,
do nothing that might render the system
unsafe or in noncompliance with such codes
and standards.
Operate the generator outdoors ONLY.
• Keep exhaust gases from entering a confined
area through windows, doors, ventilation, crawl
spaces or other openings (Figure 1.9).
• It is highly recommended that carbon monox-
ide detector(s) be installed indoors according
to the manufacturer's instructions/recommen-
dations.
• The generator must me mounted safely per
applicable codes and the manufacturer's speci-
fications. Do NOT alter or add to the exhaust
system, or do anything that might render the
exhaust system unsafe or in noncompliance
with applicable codes and standards.
1.11.1 GENERATOR
Install the generator set, in its protective enclosure, outdoors,
where adequate cooling and ventilating air is always available
(Figure 1.9). Consider these factors:
The installation of the generator • must comply strictly with
NFPA 37, NFPA 54, NFPA 58, and NFPA 70 standards.
Install the unit where air inlet and outlet openings will not • become obstructed by leaves, grass, snow, etc.. If prevailing
winds will cause blowing or drifting, consider using a wind-
break to protect the unit.
Install the generator on high ground where water levels will not • rise and endanger it.
Allow sufficient room on all sides of the generator for mainte-• nance and servicing. This unit must be installed in accordance
with current applicable NFPA 37 and NFPA 70 standards; as
well as any other federal, state and local codes for minimum
distances from other structures. DO NOT install under wooden
decks or structures unless there is at least four (4) feet of clear-
ance above the generator, three (3) feet of clearance on sides
and front, and 18 inches of clearance at back of unit.
Install the unit where rain gutter down spouts, roof run-off, • landscape irrigation, water sprinklers or sump pump discharge
does not flood the unit or spray the enclosure, including any air
inlet or outlet openings.
Install the unit where services will not be affected or obstructed, • including concealed, underground or covered services such as
electrical, fuel, phone, air conditioning or irrigation.
Where strong prevailing winds blow from one direction, face the • generator air inlet openings to the prevailing winds.
Install the generator as close as possible to the fuel supply, to • reduce the length of piping.
Install the generator as close as possible to the transfer switch. • REMEMBER THAT LAWS OR CODES MAY REGULATE THE
DISTANCE AND LOCATION.
The genset must be installed on a level surface. The base frame • must be level within two (2) inches all around.
General Information

11
The generator is typically placed on pea gravel or crushed • stone. Check local codes if a concrete slab is required. If a
concrete base slab is required, all federal, state and local codes
should be followed. Special attention should be given to the
concrete base slab which should exceed the length and width
of the generator by a minimum of six (6) inches (0.152 meters)
on all sides.
Figure 1.9 – Generator Clearances
1.11.2 INSTALLATION GUIDELINES FOR STATIONARY
STATIONARY AIR-COOLED 8, 10, 13, 14, 16, 17
AND 20 KW GENERATORS
The National Fire Protection Association has a standard for the
installation and use of stationary combustion engines. That
standard is NFPA 37 and its requirements limit the spacing of an
enclosed generator set from a structure or wall (Figure 1.10).
NFPA 37, Section 4.1.4, Engines Located Outdoors. Engines, and
their weatherproof housings if provided, that are installed outdoors
shall be located at least 5 ft. from openings in walls and at least 5
ft. from structures having combustible walls. A minimum separa-
tion shall not be required where the following conditions exist:
1. The adjacent wall of the structure has a fire resistance rating
of at least 1 hour.
2. The weatherproof enclosure is constructed of noncombus-
tible materials and it has been demonstrated that a fire within
the enclosure will not ignite combustible materials outside the
enclosure.
Annex A — Explanatory Material
A4.1.4 (2) Means of demonstrating compliance are by means
of full scale fire test or by calculation procedures.
Because of the limited spaces that are frequently available for
installation, it has become apparent that exception (2) would be
beneficial for many residential and commercial installations. With
that in mind, the manufacturer contracted with an independent
testing laboratory to run full scale fire tests to assure that the
enclosure will not ignite combustible materials outside the enclo-
sure.
The criteria was to determine the worst case fire scenario within
the generator and to determine the ignitability of items outside the
engine enclosure at various distances. The enclosure is construct-
ed of non-combustible materials and the results and conclusions
from the independent testing lab indicated that any fire within the
generator enclosure would not pose any ignition risk to nearby
combustibles or structures, with or without fire service personnel
response.
Based on this testing and the requirements of NFPA 37, Sec 4.1.4,
the guidelines for installation of the generators listed above are
changed to 18 inches (457mm) from the back side of the genera-
tor to a stationary wall or building. For adequate maintenance and
airflow clearance, the area above the generator should be at least
4 feet with a minimum of 3 feet at the front and ends of the enclo-
sure. This would include trees, shrubs and vegetation that could
obstruct airflow. See the diagram on the reverse of this page and
the installation drawing within the owner’s manual for details.
Generator exhaust contains DEADLY carbon monoxide gas. This
dangerous gas can cause unconsciousness or death. Do not place
the unit near windows, doors, fresh air intakes (furnaces, etc.) or
any openings in the building or structure, including windows and
doors of an attached garage.
If the AUTO/OFF/MANUAL switch is not set
to its OFF position, the generator can crank
and start as soon as the battery cables are
connected. If the utility power supply is not
turned off, sparking can occur at the battery
posts and cause an explosion.
1.12 BATTERY REQUIREMENTS
See the Specifications section for correct battery size and rating.
1.13 BATTERY INSTALLATION
Fill the battery with the proper electrolyte fluid if necessary and
have the battery fully charged before installing it.
Before installing and connecting the battery, complete the follow-
ing steps:
1. Set the generator's AUTO/OFF/MANUAL switch to OFF.
2. Turn off utility power supply to the transfer switch.
3. Remove the 7.5A fuse from the generator control panel.
Battery cables were factory connected at the generator (Figure
1.11). Connect cables to battery posts as follows:
4. Connect the red battery cable (from starter contactor) to the
battery post indicated by a positive, POS or (+).
5. Connect the black battery cable (from frame ground) to the
battery post indicated by a negative, NEG or (—).
6. Install the battery post covers (included).
NOTE:
Dielectric grease should be used on battery posts to aid in the
prevention of corrosion.
NOTE:
Damage will result if battery connections are made in reverse.
General Information

12
Figure 1.10 – Installation Guidelines
18 inches
Minimum Distance
36 inches
36 inches 36 inches
60 inches 60 inches
Existing Wall
No windows or openings in the wall permitted
within 5 feet from any point of the generator.
Top of Generator
60” Minimum
60” Recommended
Minimum From Ends
18 inches
Minimum
Generator
Clearance from windows,
doors, any openings in the
wall, shrubs or vegetation
over 12” in height
Clearance from the ends and front of the
generator should be 36 inches. This
would include shrubs, trees and any
kind of vegetation. Clearance at the top
should be a minimum of 60 inches from
any structure, overhang or projections
from the wall. The generator should not
be placed under a deck or other
structure that is closed in and would limit
or contain air flow.
These guidelines are based upon fire
testing of the generator enclosure and
the manufacturer’s requirement for air
flow for proper operation. Local codes
may be different and more restrictive
than what is described here.
This drawing supersedes installation instructions in all Carrier air-cooled installation and owner’s manuals dated
previous to May 26, 2007.
General Information

13
Figure 1.11 – Battery Cable Connections
NOTE:
In areas where temperatures regularly fall below 32° F (0° C) it
is recommended that a pad type battery heater be installed to
aid in cold climate starting.
1.14 THE BATTERY
Do not dispose of the battery in a fire. The
battery is capable of exploding.
A battery presents a risk of electrical shock
and high short circuit current. The following
precautions are to be observed when work-
ing on batteries:
• Remove the 7.5A fuse from the generator con-
trol panel.
• Remove watches, rings or other metal objects.
• Use tools with insulated handles.
• Wear rubber gloves and boots;
• Do not lay tools or metal parts on top of the
battery.
• Disconnect charging source prior to connecting
or disconnecting battery terminals.
n Do not open or mutilate the battery.
Released electrolyte has been known to
be harmful to the skin and eyes, and to be
toxic.
n The electrolyte is a dilute sulfuric acid that
is harmful to the skin and eyes. It is electri-
cally conductive and corrosive.
The following procedures are to be observed:
• Wear full eye protection and protective clothing.
• Where electrolyte contacts the skin, wash it off
immediately with water.
• Where electrolyte contacts the eyes, flush thor-
oughly and immediately with water and seek
medical attention.
• Spilled electrolyte is to be washed down with
an acid neutralizing agent. A common practice
is to use a solution of 1 pound (500 grams)
bicarbonate of soda to 1 gallon (4 liters) of
water. The bicarbonate of soda solution is to
be added until the evidence of reaction (foam-
ing) has ceased. The resulting liquid is to be
flushed with water and the area dried.
Lead-acid batteries present a risk of fire
because they generate hydrogen gas. The fol-
lowing procedures are to be followed:
• DO NOT SMOKE when near the battery.
• DO NOT cause flame or spark in battery area.
• Discharge static electricity from body before
touching the battery by first touching a ground-
ed metal surface.
n Be sure the AUTO/OFF/MANUAL switch is
set to the OFF position before connecting
the battery cables. If the switch is set to
AUTO or MANUAL, the generator can crank
and start as soon as the battery cables are
connected.
Be sure the utility power supply is turned off
and the 7.5A fuse is removed from the gener-
ator control panel, or sparking may occur at
the battery posts as the cables are attached
and cause an explosion.
Servicing of the battery is to be performed or supervised by per-
sonnel knowledgeable of batteries and the required precautions.
Keep unauthorized personnel away from batteries.
See the Specifications section for the correct size and rating when
replacing the battery. Have these procedures performed at the
intervals specified in the “Service Schedule.” A negative ground
system is used. Battery connections are shown on the wiring dia-
grams. Make sure the battery is correctly connected and terminals
are tight. Observe battery polarity when connecting the battery to
the generator set.
1.15 BATTERY CHARGER
NOTE:
The battery charger is integrated into the control module in all
models.
It operates as a "Smart Charger" which ensures output is continu-
ally optimized to promote maximum battery life and charging levels
are at safe conditions.
NOTE:
There is a warning on the LCD display when the battery needs
service.
General Information

14
2.1 ACTIVATE THE GENERATOR
When battery power is applied to the generator during the installa-
tion process, the controller will light up. However, the generator still
needs to be activated before it will automatically run in the event
of a power outage.
Activating the generator is a simple one time process that is guided
by the controller screen prompts. Once the product is activated,
the controller screen will not prompt you again, even if you discon-
nect the generator battery.
After obtaining your activation code, please complete the following
steps at the generator’s control panel in the Activation Chart.
2.2 BEFORE INITIAL START-UP
NOTE:
These units have been run and tested at the factory prior to
being shipped and do not require any type of break-in.
NOTE:
This unit comes filled with oil from the factory. Check the oil
level and add the appropriate amount if necessary.
Before starting, complete the following:
1. Set the generator’s main circuit breaker to its OFF (or OPEN)
position.
2. Set the generator's AUTO/OFF/MANUAL switch to the OFF
position.
3. Turn OFF all breakers on the load center of the transfer box (T1
and T2).
4. Turn OFF all loads connected to the transfer switch terminals
T1 and T2.
5. Check the engine crankcase oil level and, if necessary, fill to
the dipstick FULL mark with the recommended oil. Do not fill
above the FULL mark.
6. Check the fuel supply. Gaseous fuel lines must have been
properly purged and leak tested in accordance with applicable
fuel-gas codes. All fuel shutoff valves in the fuel supply lines
must be open.
During initial start up only, the generator may exceed the normal
number of start attempts and experience an “over crank” fault (See
the "Overcrank" section). This is due to accumulated air in the fuel
system during installation. Reset the control board and restart up
to two more times, if necessary. If unit fails to start, contact the
local dealer for assistance.
n Never operate the engine with the oil level
below the “Add” mark on the dipstick. Doing
this could damage the engine.
2.3 CHECK TRANSFER SWITCH
OPERATION
Refer to the "Manual Transfer Operation" section, of the owner’s
manual for procedures.
Do not attempt manual transfer switch opera-
tion until all power voltage supplies to the
transfer switch have been positively turned
off. Failure to turn off all power voltage sup-
plies will result in extremely hazardous and
possibly fatal electrical shock.
2.4 ELECTRICAL CHECKS
Complete electrical checks as follows:
1. Set the generator's main circuit breaker to its OFF (or OPEN)
position.
2. Set the generator's AUTO/OFF/MANUAL switch to the OFF
position.
3. Turn OFF all breakers on the load center of the transfer box (T1
and T2).
4. Turn on the utility power supply to the transfer switch using
the means provided (such as a utility main line circuit break-
er).
The transfer switch is now electrically
“hot.” Contact with “hot” parts will result in
extremely hazardous and possibly fatal
electrical shock. Proceed with caution.
5. Use an accurate AC voltmeter to check utility power source
voltage across transfer switch terminals N1 and N2. Nominal
line-to-line voltage should be 240 volts AC.
6. Check utility power source voltage across terminals N1 and
the transfer switch neutral lug; then across terminal N2 and
neutral. Nominal line-to-neutral voltage should be 120 volts
AC.
7. When certain that utility supply voltage is compatible with
transfer switch and load circuit ratings, turn OFF the utility
power supply to the transfer switch.
8. On the generator panel, set the Auto/Off/ Manual switch to
MANUAL. The engine should crank and start.
9. Let the engine warm up for about five minutes to allow inter-
nal temperatures to stabilize. Then, set the generator’s main
circuit breaker to its ON (or closed) position.
Proceed with caution! Generator power volt-
age is now supplied to the transfer switch.
Contact with live transfer switch parts will
result in dangerous and possibly fatal electri-
cal shock.
Post Installation Start-up and Adjustments

15
ACTIVATION CHART
CHOOSE LANGUAGE TROUBLESHOOTING
Display Reads: Use ARROW keys to scroll to desired lan-
guage. Press ENTER to select.
If the wrong language is chosen, it can be
changed later using the “edit” menu.
Display Reads: Press ENTER to begin the activation pro-
cess.
If ESCAPE is pressed instead of ENTER,
your generator will only run in manual mode
(for test purposes) and NOT ACTIVATED will
be displayed. You will need to remove the
generator control panel fuse AND disconnect
the T1, N1 and N2 connector in the external
connection box (if equipped); or disconnect
utility input (main breaker) to the transfer
switch for 3-5 seconds and reconnect, then
begin with Step 1.
Display Reads: If you do not have your activation code,
go to www.activategen.com or call
1-888-9ACTIVATE (922-8482).
If you already have your activation code,
wait 3-5 seconds for the next display.
ENTER ACTIVATION CODE (Passcode) TROUBLESHOOTING
Display Reads: Use ARROW keys to scroll and find the first
number of your Activation Code.
Press ENTER to select.
Repeat this step until all digits have been
entered.
Use ESCAPE to correct previous digits.
Display Reads: Activation is complete when all digits are
entered above and your screen shows this
display.
Follow the controller prompts to continue
setting the time function. Refer to your
Owner’s Manual with questions.
What happens if “Wrong Passcode Try
Again” appears?
Reenter the activation code. If a second
attempt is unsuccessful, check the number
against the code given on activategen.com.
If it is correct and the generator will not
accept it, contact 1-888-9ACTIVATE (922-
8482).
“SELECT HOUR (0-23)”
“- +”6
Escape Enter
Serial 123456789
Passcode XXXXX +/-
Escape Enter
To Activate go to
www.activategen.com
Escape Enter
Activate me (ENT) or
ESC to run in manual
Escape Enter
Language
- English +
Escape Enter
Post Installation Start-up and Adjustments

16
10. Connect an accurate AC voltmeter and a frequency meter
across transfer switch terminal lugs E1 and E2. Voltage
should be 238-242 at a frequency of 59.5-60.5 Hertz.
11. Connect the AC voltmeter test leads across terminal lugs E1
and neutral; then across E2 and neutral. In both cases, voltage
reading should be 119-121 volts AC.
12. Set the generator’s main circuit breaker to its OFF (or OPEN)
position. Let the engine run at no-load for a few minutes to
stabilize internal engine generator temperatures.
13. Set the generator's AUTO/OFF/MANUAL switch to OFF. The
engine should shut down.
NOTE:
It is important not to proceed until certain that generator AC
voltage and frequency are correct and within the stated limits.
2.5 GENERATOR TESTS UNDER
LOAD
To test the generator set with electrical loads applied, proceed as
follows:
1. Set generator’s main circuit breaker to its OFF (or OPEN) posi-
tion.
2. Turn OFF all breakers on the load center of the transfer box (T1
and T2).
3. Set the generator's AUTO/OFF/MANUAL switch to OFF.
4. Turn OFF the utility power supply to the transfer switch,
using the means provided (such as a utility main line circuit
breaker).
Do not attempt manual transfer switch opera-
tion until all power voltage supplies to the
transfer switch have been positively turned
off. Failure to turn off all power voltage sup-
plies will result in extremely hazardous and
possibly fatal electrical shock.
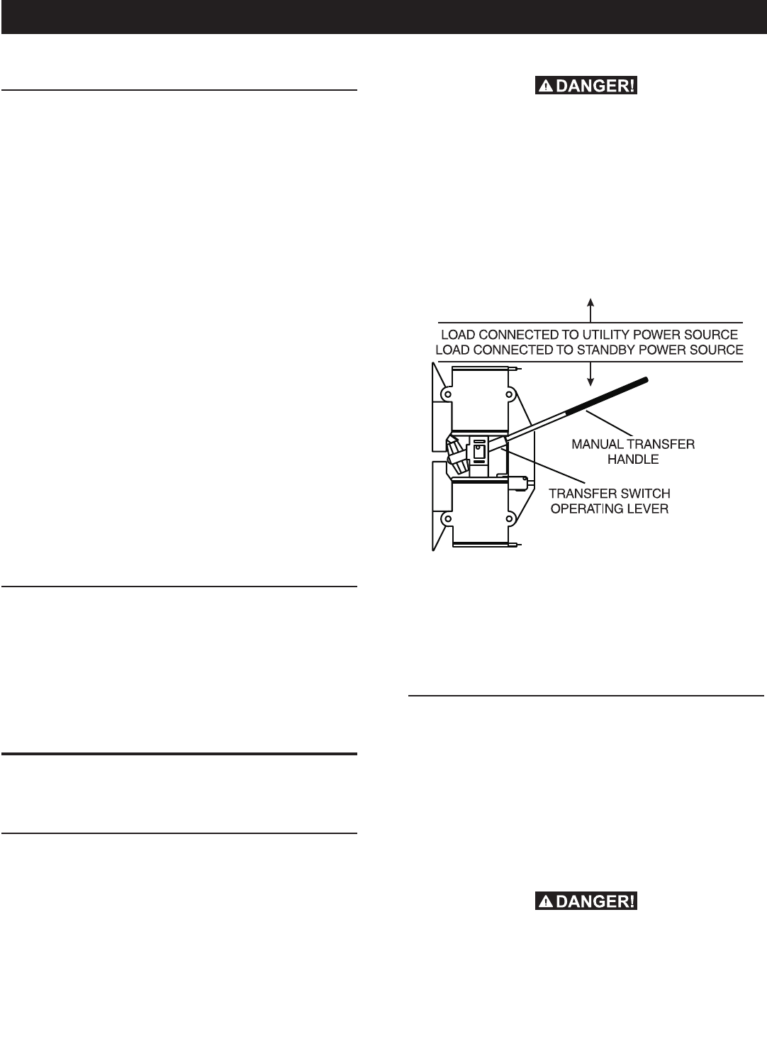
5. Manually set the transfer switch to the STANDBY position, i.e.,
load terminals connected to the generator's E1/E2 terminals.
The transfer switch operating lever should be down.
6. Set the generator's AUTO/OFF/MANUAL switch to MANUAL.
The engine should crank and start immediately.
7. Let the engine stabilize and warm up for a few minutes.
8. Set the generator’s main circuit breaker to its ON (or CLOSED)
position. Loads are now powered by the standby generator.
9. Turn ON the load center of the transfer switch (T1 and T2).
10. Connect an accurate AC voltmeter and a frequency meter
across terminal lugs E1 and E2.
Voltage should be greater than 240 volts and frequency • should be 60 Hz.
11. Let the generator run at full rated load for 20-30 minutes.
Listen for unusual noises, vibration or other indications of
abnormal operation. Check for oil leaks, evidence of overheat-
ing, etc.
12. When testing under load is complete, turn OFF electrical
loads.
13. Set the generator's main circuit breaker to its OFF (or OPEN)
position.
14. Let the engine run at no-load for a few minutes.
15. Set the AUTO/OFF/MANUAL switch to OFF. The engine should
shut down.
2.6 CHECKING AUTOMATIC
OPERATION
To check the system for proper automatic operation, proceed as
follows:
1. Set generator’s main circuit breaker to its OFF (or OPEN) posi-
tion.
2. Check that the AUTO/OFF/MANUAL switch is set to OFF.
3. Turn OFF the utility power supply to the transfer switch, using
means provided (such as a utility main line circuit breaker).
4. Manually set the transfer switch to the UTILITY position, i.e.,
load terminals connected to the utility power source side.
5. Turn ON the utility power supply to the transfer switch,
using the means provided (such as a utility main line circuit
breaker).
6. Set the generator's main circuit breaker to its ON (or CLOSED)
position.
7. Set the AUTO/OFF/MANUAL switch to AUTO. The system is
now ready for automatic operation.
8. Turn OFF the utility power supply to the transfer switch.
With the AUTO/OFF/MANUAL switch at AUTO, the engine should
crank and start when the utility source power is turned OFF after
a 10 second delay. After starting, the transfer switch should
connect load circuits to the standby side after a five (5) second
delay. Let the system go through its entire automatic sequence of
operation.
With the generator running and loads powered by generator AC
output, turn ON the utility power supply to the transfer switch. The
following should occur:
After about 15 seconds, the switch should transfer loads back • to the utility power source.
About one minute after re-transfer, the engine should shut • down.
Post Installation Start-up and Adjustments

17
3.1 CONTROL PANEL INTERFACE
3.1.1 USING THE AUTO/OFF/MANUAL SWITCH
(FIGURE 3.1)
n With the switch set to AUTO, the engine may
crank and start at any time without warning.
Such automatic starting occurs when utility
power source voltage droops below a preset
level or during the normal exercise cycle. To
prevent possible injury that might be caused
by such sudden starts, always set the switch
to OFF and remove the fuses before work-
ing on or around the generator or transfer
switch. Then, place a “DO NOT OPERATE”
tag on the generator panel and on the trans-
fer switch.
1. “AUTO” Position – Selecting this switch activates fully auto-
matic system operation. It also allows the unit to automati-
cally start and exercise the engine every seven days with the
setting of the exercise timer (see the Setting the Exercise
Timer section).
2. “OFF” Position – This switch position shuts down the engine.
This position also prevents automatic operation.
3. “MANUAL” Position – Set the switch to MANUAL to crank
and start the engine. Transfer to standby power will not occur
unless there is a utility failure.
3.1.2 SETTING THE EXERCISE TIMER
This generator is equipped with an exercise timer. Once it is set,
the generator will start and exercise every seven days, on the day
of the week and at the time of day specified. During this exercise
period, the unit runs for approximately 12 minutes and then shuts
down. Transfer of loads to the generator output does not occur
during the exercise cycle unless utility power is lost.
Figure 3.1 – 8/10/13/14/16/17 & 20kW
Generator Control Panel
Escape
MAIN FUSE
AUTO OFF MANUAL
7.5 AMP
Enter
INSTALLATION ASSISTANT
Interconnect System Self Test Feature (follow the on-screen
prompts)
Upon power up, this controller will go through a system self test
which will check for the presence of utility voltage on the DC
circuits. This is done to prevent damage if the installer mistakenly
connects AC utility power sense wires into the DC terminal block.
If utility voltage is detected, the controller will display a warning
message and lock out the generator, preventing damage to the
controller. Power to the controller must be removed to clear this
warning.
Utility voltage must be turned on and present at the N1 and N2
terminals inside the generator control panel for this test to be
performed and pass.
NOTE:
DAMAGE CAUSED BY MISWIRING OF THE INTERCONNECT
WIRES IS NOT WARRANTABLE!
This test will be performed each time the controller is powered
up.
Upon first power up of the generator, the display interface will
begin an installation assistant. The assistant will prompt the user
to set the minimum settings to operate. These settings are sim-
ply: Current Date/Time and Exercise Day/Time. The maintenance
intervals will be initialized when the exercise time is entered (Figure
3.1).
The exercise settings can be changed at any time via the "EDIT"
menu (see Appendix, "Menu System").
If the 12 volt battery is disconnected or the fuse removed, the
Installation Assistant will operate upon power restoration. The
only difference is the display will only prompt the customer for the
current Time and Date.
IF THE INSTALLER TESTS THE GENERATOR PRIOR TO
INSTALLATION, PRESS THE “ENTER” KEY TO AVOID SETTING
UP THE EXERCISE TIME. THIS WILL ENSURE THAT WHEN
THE CUSTOMER POWERS UP THE UNIT, HE WILL STILL BE
PROMPTED TO ENTER AN EXERCISE TIME.
NOTE:
The exerciser will only work in the AUTO mode and will not work
unless this procedure is performed. The current date/time will
need to be reset every time the 12 volt battery is disconnected
and then reconnected, and/or when the fuse is removed.
Low Speed Exercise
17 and 20kW units will run at 2,400 rpm.
Operation

18
Display Interface Menus
The LCD display is organized as detailed below:
The “Home” page, this page is the default page which will be • displayed if no keys are pressed for 30 seconds. This page
normally shows the current Status message and the current
date and time. The highest priority active Alarm and/or Warning
will be automatically posted on this page as well as flashing
the backlight when such an event is detected. In the case of
multiple Alarms or Warnings, only the first message will be
displayed. To clear an Alarm or Warning, see the Protection
Systems section - Clear Alarm.
The display backlight is normally off. If the user presses any • key, the backlight will come on automatically and remain on for
30 seconds after the last key was pressed.
The “Main Menu” page will allow the user to navigate to all other • pages or sub-menus by using the Left/Right and Enter keys.
This page can be accessed at any time with several presses of
the dedicated Escape key. Each press of the Escape key takes
you back to the previous menu until the main menu is reached.
This page displays the following options: HISTORY; STATUS;
EDIT; AND DEBUG. (See the Appendix - "Menu System".)
3.2 AUTOMATIC TRANSFER
OPERATION
To select automatic operation, do the following:
1. Make sure the transfer switch main contacts are set to their
UTILITY position, i.e., loads connected to the utility power
source (Figure 3.1).
2. Be sure that normal UTILITY power source voltage is avail-
able to transfer switch terminal lugs N1 and N2 (Refer to the
Electrical Data section).
3. Set the generator’s AUTO/OFF/MANUAL switch to AUTO.
4. Set the generator’s main circuit breaker to its ON (or CLOSED)
position.
With the preceding steps complete, the generator will start auto-
matically when utility source voltage drops below a preset level.
After the unit starts, loads are transferred to the standby power
source. Refer to the Sequence of Automatic Operation section.
3.3 SEQUENCE OF AUTOMATIC
OPERATION
3.3.1 UTILITY FAILURE
Initial Conditions: Generator in Auto, ready to run, load being sup-
plied by utility source. When utility fails (below 60% of nominal),
a 10 second (optionally programmable) line interrupt delay time is
started. If the utility is still gone when the timer expires, the engine
will crank and start. Once started, a five (5) second engine warm-
up timer will be initiated. When the warm-up timer expires, the
control will transfer the load to the generator. If the utility power is
restored (above 80% of nominal) at any time from the initiation of
the engine start until the generator is ready to accept load (5 sec-
ond warm-up time has not elapsed), the controller will complete
the start cycle and run the generator through its normal cool down
cycle; however, the load will remain on the utility source.
3.3.2 CRANKING
The system will control the cyclic cranking as follows: 16 second
crank, seven (7) second rest, 16 second crank, seven (7) second
rest followed by three (3) additional cycles of seven (7) second
cranks followed by seven (7) second rests.
Choke Operation
1. The 990/999cc engines have an electric choke in the air
box that is automatically controlled by the electronic control
board.
2. The 530cc engines have an electric choke on the divider panel
air inlet hose that is automatically controlled by the electronic
control board.
3. The 410cc engines have a choke behind the air box that is
automatically controlled by the electronic control board.
Failure to Start
This is defined as any of the following occurrences during crank-
ing:
1. Not reaching starter dropout within the specified crank cycle.
Starter dropout is defined as four (4) cycles at 1,000 RPM.
2. Reaching starter dropout, but then not reaching 2200 RPM
within 15 seconds. In this case the control board will go into
a rest cycle for seven (7) seconds, then continue the rest of
the crank cycle.
During a rest cycle the start and fuel outputs are de-energized and
the magneto output is shorted to ground.
Cranking Conditions
The following notes apply during cranking cycle.
1. Starter motor will not engage within five (5) seconds of the
engine shutting down.
2. The fuel output will not be energized with the starter.
3. The starter and magneto outputs will be energized together.
4. Once the starter is energized the control board will begin look-
ing for engine rotation. If it does not see an RPM signal within
three (3) seconds it will shut down and latch out on RPM
sensor loss.
5. Once the control board sees an RPM signal it will energize the
fuel solenoid, drive the throttle open and continue the crank
sequence.
6. Starter motor will disengage when speed reaches starter
dropout.
7. If the generator does not reach 2200 RPM within 15 seconds,
re-crank cycle will occur.
8. If engine stops turning between starter dropout and 2200
RPM, the board will go into a rest cycle for seven (7) seconds
then re-crank (if additional crank cycles exist).
9. Once started, the generator will wait for a hold-off period
before starting to monitor oil pressure and oil temperature
(refer to the Alarm Messages section for hold-off times).
10. During Manual start cranking, if the Mode switch is moved
from the Manual position, the cranking stops immediately.
11. During Auto mode cranking, if the Utility returns, the cranking
cycle does NOT abort but continues until complete. Once the
engine starts, it will run for one (1) minute, then shut down.
Operation

19
3.3.3 LOAD TRANSFER
The transfer of load when the generator is running is dependent
upon the operating mode as follows:
1. Manual
Will not transfer to generator if utility is present.•
Will transfer to generator if utility fails (below 65% of nominal • for 10 consecutive seconds.
Will transfer back when utility returns for 15 consecutive • seconds. The engine will continue to run until removed from
the Manual mode.
2. Auto
Will start and run if Utility fails for 10 consecutive seconds.•
Will start a five (5) second engine warm-up timer.•
Will not transfer if utility subsequently returns.•
Will transfer to generator if utility is still not present.•
Will transfer back to utility once utility returns (above 75% of • nominal) for 15 seconds.
Will transfer back to utility if the generator is shut down for • any reason (such as the switch is in the OFF position or a
shutdown alarm.
After transfer, will shut down engine after one (1) minute • cool-down time.
3. Exercise
Will not exercise if generator is already running in either Auto • or Manual mode.
During exercise, the controller will only transfer if utility fails • during exercise for 10 seconds, and will switch to Auto
mode.
3.3.4 UTILITY RESTORED
Initial Condition: Generator supplying power to customer load.
When the utility returns (above 80% of nominal), a 15 second
return to utility timer will start. At the completion of this timer, if
the utility supply is still present and acceptable, the control will
transfer the load back to the utility and run the engine through a
one (1) minute cool down period and then shut down. If utility fails
for three (3) seconds during this cool down period, the control
will transfer load back to the generator and continue to run while
monitoring for utility to return.
3.4 MANUAL TRANSFER
OPERATION
3.4.1 TRANSFER TO GENERATOR POWER SOURCE
To start the generator and activate the transfer switch manually,
proceed as follows:
1. Set the generator’s AUTO/OFF/MANUAL switch to OFF.
2. Set the generator’s main circuit breaker to its OFF (or OPEN)
position.
3. Turn OFF the utility power supply to the transfer switch
using the means provided (such as a utility main line circuit
breaker).
Do not attempt to activate the transfer switch
manually until all power voltage supplies to
the switch have been positively turned off.
Failure to turn off all power voltage supplies
may result in extremely hazardous and pos-
sibly fatal electrical shock.
4. Use the manual transfer handle inside the transfer switch to
move the main contacts to their STANDBY position, i.e., loads
connected to the standby power source (Figure 3.2).
Figure 3.2 – Manual Transfer Switch Operation
5. To crank and start the engine, set the AUTO/OFF/MANUAL
switch to MANUAL.
6. Let the engine stabilize and warm up for a few minutes.
7. Set the generator’s main circuit breaker to its ON (or CLOSED)
position. The standby power source now powers the loads.
3.4.2 TRANSFER BACK TO UTILITY POWER SOURCE
When utility power has been restored, transfer back to that source
and shut down the generator. This can be accomplished as fol-
lows:
1. Set the generator’s main circuit breaker to its OFF (or OPEN)
position.
2. Let the engine run for a minute or two at no-load to stabilize
the internal temperatures.
3. Set the generator’s AUTO/OFF/MANUAL switch to its OFF (or
OPEN) position. The engine should shut down.
4. Check that utility power supply to the transfer switch is turned
OFF.
Do not attempt to activate the transfer switch
manually until all power voltage supplies to
the switch have been positively turned off.
Failure to turn off all power voltage supplies
may result in extremely hazardous and pos-
sibly fatal electrical shock.
Operation

20
5. Use the manual transfer handle inside the transfer switch to
move the main contacts back to their UTILITY position, i.e.,
loads connected to the utility power source (Figure 3.2).
6. Turn ON the utility power supply to the transfer switch using
the means provided.
7. Set the system to automatic operation as outlined in Automatic
Transfer Operation section.
3.5 SIDE COMPARTMENT
(FIGURES 3.3 & 3.4)
Local codes may require this compartment to be locked. A hasp is
provided so the owner can secure the compartment with their own
padlock. Check local codes in the area.
3.5.1 MAIN CIRCUIT BREAKER
This is a 2-pole breaker rated according to the Specifications sec-
tion.
3.5.2 EXTERIOR READY LIGHTS
Green LED ‘Ready’ light is on when utility is present and switch • is in AUTO indicating the generator is ready and when the gen-
erator is running.
Red LED ‘Alarm’ light is on when the generator is OFF or a fault • is detected. (See the Protections Systems section.)
Yellow LED ‘Maintenance’ light (See the Protections Systems • section.)
3.5.3 120 VAC GFCI OUTLET & 15 AMP BREAKER
(17 & 20 KW ONLY)
These models are equipped with an external, 15 amp, 120 volt,
GFCI convenience outlet that is located in a compartment on the
right side of generator (Figure 1.3).
When the generator is running, in the absence of utility power, this
outlet may also be used to power items outside your home such
as lights or power tools. This outlet may also be used when utility
power is present by running the generator in manual mode. This
outlet does not provide power if the generator is not running. This
outlet is protected by a 15 amp circuit breaker in the same com-
partment as the outlet. (Do not use when the generator is running
in exercise mode.)
Figure 3.3 – Side Compartment
Figure 3.4 – Open Side Compartment
120V GFCI Outlet 15 Amp Outlet Breaker
Main Circuit BreakerLED Indicator Lights
3.6 PROTECTION SYSTEMS
3.6.1 ALARMS
Highest Priority (Latching) Displayed on the control panel and the
external red LED. They must be cleared before the alarm message
goes away. The alarm log records each occurrence (see Appendix
- "Menu System").
Low Oil Pressure (Shutdown Alarm)
A five (5) second delay on start-up and seven (7) second delay
once the engine is running.
This switch (Figure 3.5) has normally closed contacts that are
held open by engine oil pressure during operation. Should the oil
pressure drop below the five (5) PSI range, switch contacts close
and the engine shuts down. The unit should not be restarted until
oil level is verified.
High Engine Temperature (Shutdown Alarm – Auto Reset)
A 10 second delay on start-up and one (1) second delay before
shutdown. Auto reset when the condition clears and restart the
engine if a valid start signal is still present.
This switch’s contacts (Figure 3.5) close if the temperature should
exceed approximately 144° C (293° F), initiating an engine shut-
down. Once the oil temperature drops to a safe level the switch’s
contacts open again.
Over Crank (Shutdown Alarm)
This occurs if the engine has not started within the specified crank
cycle. (See "Cranking" section.)
NOTE:
The oil drain hose may be routed in the opposite direction as
shown in figure.
Operation

21
Figure 3.5 – Low Oil Pressure and
High Temperature Switches
Oil Filter
Oil
Drain
Hose
Low Oil Switch High Temp Switch
L
o
o
s
e
n
Over Speed (Shutdown Alarm)
4320 RPM for three (3) seconds or 4500 RPM immediately. This
feature protects the generator from damage by shutting it down
if it happens to run faster than the preset limit. This protection
also prevents the generator from supplying an output that could
potentially damage appliances connected to the generator circuit.
Contact the nearest Dealer if this failure occurs.
RPM Sense Loss (Shutdown Alarm)
During cranking, if the Control Board does not see a valid RPM
signal within three (3) seconds, it will shut down and lock out on
RPM sense loss. While engine is running, if RPM signal is lost for
one (1) second the Control Board will shut the engine down, wait
15 seconds, then re-crank the engine. If no RPM signal is detected
within the first three (3) seconds of cranking, the Control Board
will shut the engine down and latch out on RPM sensor loss. If the
RPM signal is detected, the engine will start and run normally. If
the RPM signal is subsequently lost again, the Control Board will
try one more re-crank attempt before latching out and displaying
the RPM sensor failure message.
Under-frequency (Shutdown Alarm)
After starting, if the generator stays under frequency for more than
30 seconds it will shut down. The under-frequency setting is 50
Hz.
Internal Fault (Shutdown Alarm)
This alarm cannot be cleared, call service dealer.
Undervoltage (Shutdown Alarm)
If the generator voltage falls below 60% of nominal for more than
five (5) seconds, it shuts down.
Overvoltage (Shutdown Alarm)
If the generator voltage rises above 110% of rating for greater than
three (3) seconds, an alarm will be issued and the unit will shut
down.
If the generator voltage rises above 130% of rating for greater than
0.2 seconds, an alarm will be issued and the unit will shut down.
Clear Alarm
Clear the alarm by setting the AUTO/OFF/MANUAL switch to the
OFF position. Press the ENTER key to unlatch any active fault and
clear the corresponding alarm message.
3.6.2 COMMON ALARM RELAY
The common alarm relay will be activated if there is a shutdown
alarm. It will not activate on warnings or indicate that the AUTO/
OFF/MANUAL switch is in the OFF position. The OFF position will
clear the alarms and the relay. The relay will not be used to indicate
a generator is not activated.
The common alarm terminals are wired to a set of potential-free
(dry) contacts on the Nexus contoller board. These Normally Open
(N.O.) contacts close when an alarm condition occurs and are
used to activate a remote signaling device. The circuit is rated for
a maximum of 130mA at 24 VDC.
3.6.3 WARNINGS
Second Priority (Non-latching) Displayed on the control panel
and the external yellow LED (V-twins only). Warnings automati-
cally clear when the monitored condition goes away. Warnings are
recorded in the alarm log. Warnings cannot cause shutdowns.
Low Battery
The Control Board monitors battery voltage and displays a warn-
ing if the battery voltage falls below 11.9 volts for one (1) minute.
Warning is automatically cleared if the battery voltage rises above
12.4 volts. Battery voltage is not monitored during the crank
cycle.
Exercise Set Error
If the exercise period becomes corrupted, a warning message
will be displayed. This message will only clear when the exercise
period is reset.
3.6.4 MAINTENANCE ALERTS
Third priority
Maintenance Message
When a maintenance period expires, a warning message will
be displayed. The alert can be reset by pressing the Enter key,
which will cause the user to be prompted to confirm the action.
Resetting will clear the alert and reset the maintenance counters
for all conditions annunciated. The history log will record the alert.
The maintenance counter will not accumulate without battery
power. Once battery power is restored, the set time prompt will be
displayed. The maintenance counters will be adjusted to the new
time and date.
Operation

22
NOTE:
Since most maintenance alerts will occur at the same time
(most have two (2) year intervals), only one will appear on the
display at any one time. Once the first alert is cleared, the next
active alert will be displayed.
4.1 FUSE
The 7.5 amp fuse on the control panel protects the DC control
circuit against overload (Figures 3.1 and 3.2). This fuse is wired
in series with the battery output lead to the panel. If this fuse ele-
ment has melted open, the engine will not be able to crank or start.
Replace this fuse using only an identical 7.5 amp replacement
fuse. Whenever the fuse is removed or replaced, the exercise timer
needs to be reset.
4.2 CHECKING THE ENGINE OIL
LEVEL
For oil capacities, see the Specifications section. For engine oil
recommendations, see the Engine Oil Recommendations section.
When power outages necessitate running the generator for extend-
ed periods of time, the oil level should be checked daily.
To check the engine oil level, proceed as follows (Figures 4.1, 4.2
and 4.3):
1. If the generator is running during a utility outage, first turn OFF
all associated loads running in the residence. Second, turn the
generator's main circuit breaker to the OFF position.
2. Move the AUTO/OFF/MANUAL switch to the OFF position.
3. Remove the dipstick and wipe it dry with a clean cloth.
4. Completely insert the dipstick; then, remove it again. The oil
level should be at the dipstick “Full” mark. If necessary, add
oil to the “Full” mark only. DO NOT FILL ABOVE THE “FULL”
MARK.
5. Install the dipstick.
6. Reset the AUTO/OFF/MANUAL switch to its original position.
7. If the generator was running during a utility outage, first turn
the generator's main circuit breaker back to the ON position.
Second, turn ON needed loads in the residence.
n Never operate the engine with the oil level
below the “Add” mark on the dipstick. Doing
this could damage the engine.
Figure 4.1 — Oil Dipstick and Fill, 8kW
Oil Dipstick and Fill
Figure 4.2 — Oil Dipstick, 10kW
Figure 4.3 — Oil Dipstick and Fill,
12, 14, 16, 17 & 20kW
Maintenance

4.3 CHANGING THE ENGINE OIL
n Hot oil may cause burns. Allow engine to
cool before draining oil. Avoid prolonged
or repeated skin exposure with used oil.
Thoroughly wash exposed areas with soap.
4.3.1 OIL CHANGE INTERVALS
See the "Service Schedule" section.
4.3.2 ENGINE OIL RECOMMENDATIONS
All oil should meet minimum American Petroleum Institute (API)
Service Class SJ, SL or better. Use no special additives. Select the
appropriate viscosity oil grade according to the expected operating
temperature.
SAE 30 • Î Above 32° F
10W-30 • Î Between 40° F and -10° F
Synthetic 5W-30 • Î 10° F and below
SAE 30
SAE 30
Synthetic 5W-30
Synthetic 5W-30
10W-30
10W-30
n Any attempt to crank or start the engine
before it has been properly serviced with the
recommended oil may result in an engine
failure.
4.3.3 OIL & OIL FILTER CHANGE PROCEDURE
To change the oil, proceed as follows:
1. Start the engine by moving the AUTO/OFF/MANUAL switch to
MANUAL and run until it is thoroughly warmed up. Then shut
OFF the engine by moving the switch to the OFF position.
2. Immediately after the engine shuts OFF, pull the oil drain hose
(Figure 4.4) free of its retaining clip. Remove the cap from the
hose and drain the oil into a suitable container.
3. After the oil has drained, replace the cap onto the end of the
oil drain hose. Retain the hose in the clip.
Change the engine oil filter as follows:
1. With the oil drained, remove the old oil filter by turning it
counterclockwise.
2. Apply a light coating of clean engine oil to the gasket of the
new filter. See the Specifications section for recommended
filter.
3. Screw the new filter on by hand until its gasket lightly contacts
the oil filter adapter. Then, tighten the filter an additional 3/4 to
one turn (Figure 4.4).
4. Refill with the proper recommended oil (see the Engine Oil
Recommendations section). See the Specifications section
for oil capacities.
5. Start the engine, run for one (1) minute, and check for leaks.
6. Shutdown and recheck oil level, add as needed. DO NOT
OVER FILL.
7. Reset the AUTO/OFF/MANUAL switch to the AUTO position.
8. Dispose of used oil at a proper collection center.
NOTE:
The oil drain hose may be routed in the opposite direction as
shown in Figure 4.4.
Figure 4.4 – Oil Drain Hose and Filter
Oil Filter
Oil
Drain
Hose
Low Oil Switch High Temp Switch
L
o
o
s
e
n
4.4 CHANGING THE ENGINE AIR
CLEANER
4.4.1 13, 14, 16, 17 & 20KW GENERATORS
See "The Generator" section for the location of the air cleaner. Use
the following procedures (Figure 4.5):
1. Lift the roof and remove the door.
2. Turn the two screws counterclockwise to loosen.
3. Remove the cover and air filter.
4. Wipe away dust or debris from inside of the air box and
around edges.
5. Install the new air cleaner into the air box.
6. Install the cover. Turn the two cover screws clockwise to
tighten.
See the Service Schedule section for air cleaner maintenance. See
the Specifications section for air filter replacement part number.
23
Maintenance

24
Figure 4.5 — 13, 14, 16, 17 & 20kW
Engine Air Cleaner
Cover
Filter
Screw
4.4.2 10KW GENERATORS
See "The Generator" section for the location of the air cleaner. Use
the following procedure (Figure 4.6):
1. Lift the roof and remove the door.
2. Turn the worm gear clamp screw counterclockwise to loos-
en.
3. Pull the old filter off the divider panel hub.
4. Wipe away dust or debris from the panel hub.
5. Install the new air cleaner onto the hub.
6. Turn the worm gear clamp screw clockwise to tighten.
7. Replace door and roof.
Figure 4.6 — 10kW Engine Air Cleaner
Air Filter
4.4.3 8KW GENERATOR
See "The Generator" section to locate the air box. Use the following
procedures to replace the dirty air filter within the air box (Figure
4.7).
1. Lift the roof and remove the door.
2. Push back on the latch of the yellow air filter access door to
swing open.
3. Pull out the old air filter and discard appropriately.
4. Install the new filter, open end first into the air box.
5. Swing the yellow door shut and snap to close.
6. Replace door and close roof securely.
Figure 4.7 — 8kW Engine Air Cleaner Location
Air Cleaner
Cover
4.5 SPARK PLUG(S)
Reset the spark plug(s) gap or replace the spark plug(s) as neces-
sary. See the Service Schedule section for maintenance require-
ments.
1. Clean the area around the base of the spark plug(s) to keep
dirt and debris out of the engine.
2. Remove the spark plug(s) and check the condition. Replace
the spark plug(s) if worn or if reuse is questionable. See the
Service Schedule section for recommended inspection. Clean
by scraping or washing using a wire brush and commercial
solvent. Do not blast the spark plug(s) to clean.
3. Check the spark plug gap using a wire feeler gauge. Adjust
the gap to 0.76 mm (0.030 inch) for 8, 10 and 20kW; and
1.02 mm (0.040 inch) for 13, 14, 16 and 17kW by carefully
bending the ground electrode (Figure 4.8).
Figure 4.8 – Setting the Spark Plug Gap
Maintenance

25
4.6 BATTERY MAINTENANCE
The battery should be inspected per the "Service Schedule" sec-
tion. The following procedure should be followed for inspection:
1. Inspect the battery posts and cables for tightness and corro-
sion. Tighten and clean as necessary.
2. Check the battery fluid level of unsealed batteries and, if nec-
essary, fill with Distilled Water Only. Do not use tap water in
batteries.
3. Have the state of charge and condition checked. This should
be done with an automotive-type battery hydrometer.
Do not dispose of the battery in a fire. The
battery is capable of exploding.
A battery presents a risk of electrical shock
and high short circuit current. The following
precautions are to be observed when work-
ing on batteries:
• Remove the 7.5A fuse from the generator con-
trol panel.
• Remove watches, rings or other metal objects.
• Use tools with insulated handles.
• Wear rubber gloves and boots.
• Do not lay tools or metal parts on top of the
battery.
• Disconnect charging source prior to connecting
or disconnecting battery terminals.
n Do not open or mutilate the battery.
Released electrolyte has been known to
be harmful to the skin and eyes, and to be
toxic.
n The electrolyte is a dilute sulfuric acid that
is harmful to the skin and eyes. It is electri-
cally conductive and corrosive. The follow-
ing procedures are to be observed:
• Wear full eye protection and protective clothing.
• Where electrolyte contacts the skin, wash it off
immediately with water.
• Where electrolyte contacts the eyes, flush thor-
oughly and immediately with water and seek
medical attention.
• Spilled electrolyte is to be washed down with
an acid neutralizing agent. A common practice
is to use a solution of 1 pound (500 grams)
bicarbonate of soda to 1 gallon (4 liters) of
water. The bicarbonate of soda solution is to
be added until the evidence of reaction (foam-
ing) has ceased. The resulting liquid is to be
flushed with water and the area dried.
Lead-acid batteries present a risk of fire
because they generate hydrogen gas. The
following procedures are to be followed:
• DO NOT SMOKE when near the battery.
• DO NOT cause flame or spark in battery area.
• Discharge static electricity from body before
touching the battery by first touching a ground-
ed metal surface.
n Be sure the AUTO/OFF/MANUAL switch is
set to the OFF position before connecting
the battery cables. If the switch is set to
AUTO or MANUAL, the generator can crank
and start as soon as the battery cables are
connected.
Be sure the utility power supply is turned off
and the 7.5A fuse is removed from the gener-
ator control panel, or sparking may occur at
the battery posts as the cables are attached
and cause an explosion.
4.7 ADJUSTING GH-410/GT-530/
990/999 VALVE CLEARANCE
After the first six (6) months of operation, check the valve clear-
ance in the engine, adjust if necessary.
Important: If feeling uncomfortable about doing this procedure
or the proper tools are not available, please contact the Dealer for
service assistance. This is a very important step to ensure longest
life for the engine.
To check valve clearance:
The engine should be cool before checking. If valve clearance is • 0.002" - 0.004" (0.05 - 0.1mm), adjustment is not needed.
Remove spark plug wires and position wires away from plugs.•
Remove spark plugs.•
Make sure the piston is at Top Dead Center (TDC) of its com-• pression stroke (both valves closed). To get the piston at TDC,
remove the intake screen at the front of the engine to gain
access to the flywheel nut. Use a large socket and socket
wrench to rotate the nut and hence the engine in a clockwise
direction. While watching the piston through the spark plug
hole. The piston should move up and down. The piston is at
TDC when it is at its highest point of travel.
To adjust valve clearance (if necessary), (Figure 4.9):
Make sure the engine is at 60° to 80° F.•
Make sure that the spark plug wire is removed from the spark • plug and out of the way.
Remove the four screws attaching the valve cover.•
Loosen the rocker jam nut. Use a 10mm allen wrench to turn • the pivot ball stud while checking clearance between the rocker
arm and the valve stem with a feeler gauge. Correct clearance
is 0.002-0.004 inch (0.05-0.1 mm).
NOTE:
Hold the rocker arm jam nut in place as the pivot ball stud is
turned.
Maintenance

26
When valve clearance is correct, hold the pivot ball stud in place
with the allen wrench and tighten the rocker arm jam nut. Tighten
the jam nut to 174 in/lbs. torque. After tightening the jam nut,
recheck valve clearance to make sure it did not change.
Install new valve cover gasket.•
Re-attach the valve cover.•
Figure 4.9 - Valve Clearance Adjustment
Jam Nut
Pivot Ball
Stud
Rocker
Arm
Valve
Stem
NOTE:
Start all four screws before tightening or it will not be possible
to get all the screws in place. Make sure the valve cover gasket
is in place.
Install spark plugs.•
Re-attach the spark plug wire to the spark plug.•
On the GT-530 and GT-990/999, repeat the process for the • other cylinder.
4.8 COOLING SYSTEM
Air inlet and outlet openings in the generator compartment must
be open and unobstructed for continued proper operation. This
includes such obstructions as high grass, weeds, brush, leaves
and snow.
Without sufficient cooling and ventilating air flow, the engine/gen-
erator quickly overheats, which causes a rapid shut down. (See
Figure 4.10 for vent locations.)
Make sure the doors and roof are in place during operation as
running the generator with them removed can effect cooling air
movement.
The exhaust from this product gets extremely
hot and remains hot after shutdown. High
grass, weeds, brush, leaves, etc. must
remain clear of the exhaust. Such materi-
als may ignite and burn from the heat of the
exhaust system.
Figure 4.10 – Cooling Vent Locations
4.9 ATTENTION AFTER
SUBMERSION
If the generator has been submerged in water, it MUST NOT be
started and operated. Following any submersion in water, have
a Dealer thoroughly clean, dry and inspect the generator. If the
structure (ex. home) has been flooded, it should be inspected by
a certified electrician to ensure there won't be any electrical prob-
lems during generator operation or when utility is returned.
4.10 CORROSION PROTECTION
Periodically wash and wax the enclosure using automotive type
products. Frequent washing is recommended in salt water/coastal
areas. Spray engine linkages with a light oil such as WD-40.
4.11 OUT OF SERVICE PROCEDURE
4.11.1 REMOVAL FROM SERVICE
If the generator cannot be exercised every seven days, and will
be out of service longer than 90 days, prepare the generator for
storage as follows:
1. Start the engine and let it warm up.
2. Close the fuel shutoff valve in the fuel supply line and allow
the unit to shut down.
3. Once the unit has shut down, switch to the OFF position.
4. Set the generator’s main circuit breaker to its OFF (or OPEN)
position.
5. Set the AUTO/OFF/MANUAL switch to OFF and turn off the util-
ity power to the transfer switch. Remove the 7.5A fuse from
the generator control panel. Disconnect the battery cables as
outlined in “General Hazards”.
6. While the engine is still warm from running, drain the oil
completely. Refill the crankcase with oil. See ”Engine Oil
Recommendations".
7. Attach a tag to the engine indicating the viscosity and clas-
sification of the oil in the crankcase.
8. Remove the spark plug(s) and spray fogging agent into the
spark plug(s) threaded openings. Reinstall and tighten the
spark plug(s).
9. Remove the battery and store it in a cool, dry room on a
wooden board. Never store the battery on any concrete or
earthen floor.
10. Clean and wipe the entire generator.
Maintenance

27
4.11.2 RETURN TO SERVICE
To return the unit to service after storage, proceed as follows:
1. Verify that utility power is turned off and that the AUTO/OFF/
MANUAL switch is set to OFF.
2. Check the tag on the engine for oil viscosity and classification.
Verify that the correct recommended oil is used in the engine
(see the Engine Oil Recommendations section). If necessary,
drain and refill with the proper oil.
3. Check the state of the battery. Fill all cells of unsealed bat-
teries to the proper level with distilled water. DO NOT USE
TAP WATER IN THE BATTERY. Recharge the battery to 100
percent state of charge, or, if defective, replace the battery.
See “Specifications,” for type and size.
4. Clean and wipe the entire generator.
5. Make sure the 7.5A fuse is removed from the generator con-
trol panel. Reconnect the battery. Observe battery polarity.
Damage may occur if the battery is connected incorrectly.
6. Open the fuel shutoff valve.
7. Insert the 7.5A fuse into the generator control panel. Start the
unit by moving the AUTO/OFF/MANUAL switch to MANUAL.
Allow the unit to warm up thoroughly.
8. Stop the unit by setting the AUTO/OFF/MANUAL switch to
OFF.
9. Turn on the utility power to the transfer switch.
10. Set the AUTO/OFF/MANUAL switch to AUTO.
11. The generator is now ready for service.
NOTE:
If the battery was dead or disconnected, the exercise timer, cur-
rent date and time must be reset.
4.11.3 ACCESSORIES
There are performance enhancing accessories available for the
air-cooled generators.
Cold Weather Kits• are recommended in areas where tempera-
tures regularly fall below 32° F (0° C).
Scheduled Maintenance Kits• include all pieces necessary to
perform maintenance on the generator along with oil recom-
mendations.
Auxiliary Transfer Switch Lockout• enables any of the transfer
switches to completely lock out one large electrical load by
tying into its control system.
A Fascia Skirt Wrap• is standard on all 20kW units. It's avail-
able for all other current production air-cooled units. It snaps
together to provide a smoothing, contoured look as well as
rodent/insect protection.
The Remote Monitor System• is a wireless, indoor mounted,
box that indicates generator run status and allows for exercise
programing as well as provide maintenance reminders.
Touch-up Paint Kits• are very important to maintain the look and
integrity of the generator enclosure. These kits include touch-up
paint and instructions if the need should arise.
For more details on accessories, please contact a Dealer.
Maintenance

28
4.12 SERVICE SCHEDULE
ATTENTION: It is recommended that all service work
be performed by the nearest Dealer.
SYSTEM/COMPONENT PROCEDURE FREQUENCY
X = Action
R = Replace as Necessary
* = Notify Dealer if Repair is
Needed.
Inspect Change Clean
W = Weekly
M = Monthly
Y = Yearly
FUEL
Fuel lines and connections* XM
LUBRICATION
Oil level X M or 24 hours of
continuous operation.
Oil X 2Y or 200 hours
of operation.**
Oil filter X 2Y or 200 hours
of operation.**
COOLING
Enclosure louvers XXW
BATTERY
Remove corrosion, ensure
dryness XXM
Clean and tighten battery
terminals XXM
Check charge state X R EVERY 6 M
Electrolyte level X R EVERY 6 M
ENGINE AND MOUNTING
Air cleaner X R 2Y or 200 hours
Spark plug(s) X R 2Y or 200 hours
GENERAL CONDITION
Vibration, Noise, Leakage, Temperature* XM
COMPLETE TUNE-UP* TO BE COMPLETED BY A DEALER 2Y or 200 hours
* Contact the nearest dealer for assistance if necessary.
** Change oil and filter after first eight (8) hours of operation and then every 200 hours thereafter, or 2 years, whichever occurs first. Change
sooner when operating under a heavy load or in a dusty or dirty environment or in high ambient temperatures.
Maintenance

29
Troubleshooting
5.1 TROUBLESHOOTING GUIDE
Problem Cause Correction
The engine will not crank. 1. Fuse blown. 1. Correct short circuit condition, replace 7.5A
fuse in generator
control panel.
2. Loose, corroded or defective 2. Tighten, clean or replace
battery cables. as necessary.
3. Defective starter contactor. (8 kW) 3. *
4. Defective starter motor. 4. *
5. Dead Battery. 5. Charge or replace battery.
The engine cranks but 1. Out of fuel. 1. Replenish fuel/Turn on fuel valve.
will not start. 2. Defective fuel solenoid (FS). 2. *
3. Open #14 wire from 3. *
engine control board.
4. Fouled spark plug(s). 4. Clean, re-gap or replace plug(s).
5. Valve lash out of adjustment. 5. Reset valve lash.
6. Choke not operating. 6. Verify choke plate moves freely.
The engine starts hard 1. Air cleaner plugged 1. Check, replace air cleaner.
and runs rough. or damaged.
2. Fouled spark plug(s). 2. Clean, re-gap or replace plug(s).
3. Fuel pressure incorrect. 3. Confirm fuel pressure to regulator
is 10-12” water column (0.36-0.43 psi) for
LP, and 5-7” water column (0.18-0.25 psi)
for natural gas.
4. Fuel selector in wrong position. 4. Move selector to correct position.
5. Choke remains closed. 5. Verify choke plate moves freely.
The AUTO/OFF/MANUAL 1. Defective switch. 1. *
switch is set to OFF, but 2. AUTO/OFF/MANUAL switch 2. *
the engine continues wired incorrectly.
to run. 3. Defective control board. 3. *
There is no AC output 1. Main line circuit breaker is in 1. Reset circuit breaker
from the generator. the OFF (or OPEN) position. to ON (or CLOSED).
2. Generator internal failure. 2. *
There is no transfer to 1. Defective transfer switch coil. 1. *
standby after utility 2. Defective transfer relay. 2. *
source failure. 3. Transfer relay circuit open. 3. *
4. Defective control logic board. 4. *
Unit consumes large 1. Engine over filled with oil. 1. Adjust oil to proper level.
amounts of oil. 2. Improper type or viscosity of oil. 2. See "Engine Oil Recommendations".
3. Damaged gasket, seal or hose. 3. Check for oil leaks.
4. Engine breather defective. 4. *
*Contact the nearest Dealer for assistance.

30
6.1 MENU SYSTEM NAVIGATION
To get to the MENU, use the "Esc" key from any page. It may need
to be pressed many times before getting to the menu page. The
currently selected menu is displayed as a flashing word. Navigate
to the menu required by using the +/- keys. When the menu
required is flashing, press the ENTER key. Depending on the menu
selected, there may be a list of choices presented. Use the same
navigation method to select the the desired screen (refer to the
Menu System diagram).
6.1.1 CHANGING SETTINGS (EDIT MENU)
To change a setting such as display contrast, go to the EDIT menu
and use the +/- keys to navigate to the setting to change. Once
this setting is displayed (e.g. Contrast), press the ENTER key to go
into the edit mode. Use the +/- keys to change the setting, press
the ENTER key to store the new setting.
NOTE:
If the ENTER key is not pressed to save the new setting, it will
only be saved temporarily. The next time the battery is discon-
nected, the setting will revert back to the previous setting.
Appendix

31
Appendix
MAIN MENU
RUN LOGALARM LOG
HISTORY STATUS
COMMANDSTATE VERSIONSDISPLAY
GENERATOR
FREQUENCY
ENGINE
HOURS
ENGINE
RPM
BATTERY
VOLTAGE
DEBUG
INPUTS OUTPUTS DISPLAYS
EDIT
CONTRAST
LANGUAGE
TIME/DATE
EXERCISE
TIME/SPEED
ESC Press the “ESCAPE” key
to jump back up through
the menu levels.
+ / - Use the “+/-” key
to navigate through
the menu.
ENTER Use the “ENTER” key
to select items or
enter data.
ESC
ESC
ESC
ESC
ESC ESC
Password is entered
on this page.
RESET
MAINTENANCE
QT TEST

32 32
Notes

33
Drawing No. 0H6392-C Installation Diagrams

34
Installation Diagrams Drawing No. 0G8280-D

35
Drawing No. 0G8280-D Installation Diagrams

36 Generac® Power Systems, Inc.
Installation Diagrams Drawing No. 0H6393-A

Generac® Power Systems, Inc. 37
Drawing No. 0H6393-A Installation Diagrams

38
FOR GENERATORS 10KW AND BELOW
FEDERAL EMISSION CONTROL WARRANTY STATEMENT
YOUR WARRANTY RIGHTS AND OBLIGATIONS
The United States Environmental Protection Agency (EPA) and Generac Power Systems, Inc. (Generac) are pleased to explain the
Emission Control System warranty on your new 2008 and later equipment. New equipment that use small spark-ignited engines
must be designed, built, and equipped to meet stringent anti-smog standards for the federal government. Generac will warrant
the emission control system on your generator for the period of time listed below provided there has been no abuse, neglect,
unapproved modification or improper maintenance of your equipment.
Your emission control system may include parts such as the: carburetor, ignition system, fuel system, catalytic converter, and other
associated emission-related components (if equipped).
MANUFACTURER’S WARRANTY COVERAGE:
This emission control system is warranted for two years. If, during such warranty period, any emission-related part on your
equipment is found to be defective in materials or workmanship, repairs or replacement will be performed by a Generac
Authorized Warranty Service Dealer.
OWNER'S WARRANTY RESPONSIBILITIES:
As the generator owner, you are responsible for the completion of all required maintenance as listed in your factory supplied
Owner's Manual. For warranty purposes, Generac recommends that you retain all receipts covering maintenance on your
generator, but Generac cannot deny warranty solely due to the lack of receipts.
As the generator owner, you should be aware that Generac may deny any and/or all warranty coverage or responsibility if your
generator, or a part/component thereof, has failed due to abuse, neglect, improper maintenance or unapproved modifications, or
the use of counterfeit and/or "grey market" parts not made, supplied or approved by Generac.
You are responsible for contacting a Generac Authorized Warranty Dealer as soon as a problem occurs. The warranty
repairs should be completed in a reasonable amount of time, not to exceed 30 days.
Warranty service can be arranged by contacting either your selling dealer or a Generac Authorized Warranty Service Dealer. To
locate the Generac Authorized Warranty Service Dealer nearest you, call our toll free number:
1-800-333-1322
IMPORTANT NOTE: This warranty statement explains your rights and obligations under the Emission Control System Warranty
(ECS Warranty), which is provided to you by Generac pursuant to federal law. See also the "Generac Limited Warranties for
Generac Power Systems, Inc.," which is enclosed herewith on a separate sheet, also provided to you by Generac. Note that this
warranty shall not apply to any incidental, consequential or indirect damages caused by defects in materials or workmanship or
any delay in repair or replacement of the defective part(s). This warranty is in place of all other warranties, expressed or implied.
Specifically, Generac makes no other warranties as to the merchantability or fitness for a particular purpose. Some states do not
allow limitations on how long an implied warranty lasts, so the above limitation may not apply to you.
The ECS Warranty applies only to the emission control system of your new equipment. If there is any conflict in terms between the
ECS Warranty and the Generac Warranty, the Generac Warranty shall apply. Both the ECS Warranty and the Generac Warranty
describe important rights and obligations with respect to your new engine.
Warranty service can be performed only by a Generac Authorized Warranty Service Facility. When requesting warranty service,
evidence must be presented showing the date of the sale to the original purchaser/owner.
If you have any questions regarding your warranty rights and responsibilities, you should contact Generac at the following
address:
ATTENTION WARRANTY DEPARTMENT
GENERAC POWER SYSTEMS, INC.
P.O. BOX 297 • WHITEWATER, WI 53190
Part 1
Part No. 0H1911 Rev. A 01/09
Warranty

39
EMISSION CONTROL SYSTEM WARRANTY
Emission Control System Warranty (ECS warranty) for equipment using small spark-ignited engines:
(a) Applicability: This warranty shall apply to equipment that uses small off-road engines. The ECS Warranty period shall begin
on the date the new equipment is purchased by/delivered to its original, end-use purchaser/owner and shall continue for 24
consecutive months thereafter.
(b) General Emissions Warranty Coverage: Generac warrants to the original, end-use purchaser/owner of the new engine or
equipment and to each subsequent purchaser/owner that the ECS when installed was:
(1) Designed, built and equipped so as to conform with all applicable regulations; and
(2) Free from defects in materials and workmanship which cause the failure of a warranted part at any time during the ECS
Warranty Period.
(c) The warranty on emissions-related parts will be interpreted as follows:
(1) Any warranted part that is not scheduled for replacement as required maintenance in the Owner's Manual shall be
warranted for the ECS Warranty Period. If any such part fails during the ECS Warranty Period, it shall be repaired or
replaced by Generac according to Subsection (4) below. Any such part repaired or replaced under the ECS Warranty shall
be warranted for the remainder of the ECS Warranty Period.
(2) Any warranted part that is scheduled only for regular inspection as specified in the Owner's Manual shall be warranted
for the ECS Warranty Period. A statement in the Owner’s Manual to the effect of "repair or replace as necessary" shall not
reduce the ECS Warranty Period. Any such part repaired or replaced under the ECS Warranty shall be warranted for the
remainder of the ECS Warranty Period.
(3) Any warranted part that is scheduled for replacement as required maintenance in the Owner's Manual shall be warranted
for the period of time prior to first scheduled replacement point for that part. If the part fails prior to the first scheduled
replacement, the part shall be repaired or replaced by Generac according to Subsection (4) below. Any such emissions-
related part repaired or replaced under the ECS warranty shall be warranted for the remainder of the period prior to the
first scheduled replacement point for that part.
(4) Repair or replacement of any warranted, emissions-related part under this ECS Warranty shall be performed at no charge
to the owner at a Generac Authorized Warranty Service Facility.
(5) Notwithstanding the provisions of subsection (4) above, warranty services or repairs must be provided at Generac
Authorized Service Facilities.
(6) When the engine is inspected by a Generac Authorized Warranty Service Facility, the purchaser/owner shall not be held
responsible for diagnostic costs if the repair is deemed warrantable.
(7) Throughout the ECS Warranty Period, Generac shall maintain a supply of warranted emission-related parts sufficient to
meet the expected demand for such parts.
(8) Any Generac authorized and approved emission-related replacement parts may be used in the performance of any ECS
warranty maintenance or repairs and will be provided without charge to the purchaser/owner. Such use shall not reduce
Generac ECS Warranty obligations.
(9) Unapproved, add-on, modified, counterfeit and/or "grey market" parts may not be used to modify or repair a Generac
engine. Such use voids this ECS Warranty and shall be sufficient grounds for disallowing an ECS Warranty claim. Generac
shall not be held liable hereunder for failures of any warranted parts of Generac equipment caused by the use of such an
unapproved, add-on, modified, counterfeit and/or "grey market" part.
EMISSION RELATED PARTS MAY INCLUDE THE FOLLOWING (IF EQUIPPED):
1) FUEL METERING SYSTEM
A. CARBURETOR AND INTERNAL PARTS
B. PRESSURE REGULATOR
2) AIR INDUCTION SYSTEM
A. INTAKE MANIFOLD
B. AIR FILTER
3) IGNITION SYSTEM
A. SPARK PLUGS
B. IGNITION COILS / MODULE
4) AIR INJECTION SYSTEM
A. PULSE AIR VALVE
5) EXHAUST SYSTEM
A. CATALYST
B. THERMAL REACTOR
C. EXHAUST MANIFOLD
Part 2
Part No. 0H1911 Rev. A 01/09
Warranty

40
Warranty
FOR GENERATORS 13KW AND ABOVE
United States Environmental Protection Agency Warranty Statement
Warranty Rights, Obligations and Coverage
The United States Environmental Protection Agency (EPA) and Generac Power Systems, Inc. (Generac), are pleased to explain the
Emission Control System Warranty on your new stationary emergency engine. If during the warranty period, any emission control
system or component on your engine is found defective in materials or workmanship Generac will repair your engine at no cost
to you for diagnosis, replacement parts and labor provided it be done by a Generac Authorized Warranty Service Facility. Your
emission control system may include parts such as the fuel metering, ignition, and exhaust systems and other related emission
related components listed below. Generac will warrant the emissions control systems on your 2009 and later model year engines
provided there has been no abuse, neglect, unapproved modification or improper maintenance of your engine. For engines less
than 130 HP the warranty period is two years from the date of sale to the ultimate purchaser. For engines greater than or equal to
130 HP the warranty period is three year from the date of the engine being placed into service.
Purchaser’s/Owner’s Warranty Responsibilities
As the engine purchaser/owner you are responsible for the following. 1.) The engine must be installed and configured in accor-
dance to the Generac’s installation specifications. 2.) The completion of all maintenance requirements listed in your Owner’s Man-
ual. 3.) Any engine setting adjustment must be done in accordance and consistent with the instructions in the Owner’s Manual. 4.)
Any emission control system or component must be maintained and operated appropriately in order to ensure proper operation of
the engine and control system to minimize emissions at all times.
Generac may deny any/or all Emission Control System Warranty coverage or responsibility of the engine, or an emission con-
trol system or component on your engine thereof, if it has failed due to abuse, neglect, unapproved modification or improper
maintenance, or the use of counterfeit and/or ‘gray market’ parts not made, supplied or approved by Generac. Warranty service/
scheduled maintenance can be arranged by contacting your selling dealer or a Generac Authorized Warranty Service dealer,
888-GENERAC (888-436-3722) or www.generac.com for the dealer nearest you. The purchaser/owner shall be responsible for any
expenses or other charges incurred for service calls and/or transportation of the product to/from the inspection or repair facilities.
The purchaser/owner shall be responsible for any and/or all damages or losses incurred while the engine is being transported/
shipped for inspection or warranty repairs. Contact Generac Power Systems Inc. for additional Emission Control System Warranty
related information, Generac Power Systems, Inc. P.O. Box 8, Waukesha, WI 53187, Phone 888-GENERAC (888-436-3722) or
www.generac.com
Emission Related Parts Include the Following (if so equipped)
1) Fuel Metering System 3) Ignition System including
1.1) Gasoline Carburetor assembly and internal components a) Spark plug, b) Ignition module,
a) Fuel filter, b) Carburetor, c) Fuel Pump c) Ignition coil, d) Spark plug wirers
1.2) Carburetion assembly and its components 4) Exhaust system
a) Fuel controller, b) Carburetor and its gaskets, a) Catalyst assembly, b) Exhaust manifold,
c) Mixer and it gaskets, d) Primary gas regulator c) Muffler, d) Exhaust pipe, e) Muffler gasket
e) Liquid vaporizer 5) Crankcase Breather Assembly including
1.3) Fuel Regulator a) Breather connection tube, b) PCV valve
2) Air Induction System including 6) Oxygen Sensor
a) Intake pipe/manifold, b) Air cleaner 7) Diagnostic Emission-Control System
Part 1
Part No. 0H1916 Rev A

41
Warranty
United States Environmental Protection Agency Compliance Requirements
Purchaser’s/Owner’s Recordkeeping Responsibilities
The United States Environmental Protection Agency (EPA) and Generac Power Systems, Inc. (Generac), are pleased to explain
your recordkeeping requirements for compliance with Subpart JJJJ – Standards of Performance for Stationary Spark Ignition
Internal Combustion Engines as listed in the Electronic Code of Federal Regulations Title 40 Part 60. As the engine purchaser/
owner who operates and maintains their certified emergency stationary engine and emission control system according to ap-
plicable emission related guidelines as specified in this Owner’s Manual you are required to meet the following notification and
recordkeeping requirements to demonstrate compliance. 1.) Maintain documentation that the engine is certified to meet emission
standards. 2.) Recordkeeping of maintenance conducted. 3.) Recordkeeping of the provision allowing natural gas engines to
operate using propane for a maximum of 100 hours per year as an alternate fuel solely during emergency operations provided the
engine is not certified to operate on propane. 4.) Meet all compliance notifications submitted to the purchaser/owner and maintain
all supporting documentation. 5.) Recordkeeping of hours of operation, including what classified the operation as emergency and
how many hours are spent for non-emergency operation. For emergency engines greater than or equal to 130 HP, recordkeep-
ing of hours of operation begins January 1, 2011. For emergency engines less than 130 HP, recordkeeping of hours of operation
begins January 1, 2009; Engines are equipped with non-resettable hour meters to facilitate recordkeeping.
Specific Air Quality Management or Air Pollution Control Districts may have different and additional record keeping/ reporting
requirements. Your permit to construct and/or operate the engine may be contingent upon compliance with those requirements.
Check with your local Air Quality Management or Air Pollution Control District for specific requirements.
Emergency stationary internal combustion engines (ICE) may be operated for the purpose of maintenance checks and readiness
testing, provided that the tests are recommended by Federal, State or local government, Generac, or the insurance company
associated with the engine. Maintenance checks and readiness testing of such units is limited to 100 hours per year. There is no
time limit on the use of emergency stationary ICE in emergency situations. The purchaser/owner may petition the Administrator for
approval of additional hours to be used for maintenance checks and readiness testing, but a petition is not required if the owner
maintains records indicating that Federal, State, or local standards require maintenance and testing of emergency ICE beyond 100
hours per year. Emergency stationary ICE may operate up to 50 hours per year in non-emergency situations, but those 50 hours
are counted towards the 100 hours per year provided for maintenance and testing. The 50 hours per year for non-emergency situa-
tions cannot be used for peak shaving or to generate income for a facility to supply power to an electric grid or otherwise supply
power as part of a financial arrangement with another entity. For purchaser/owner of emergency engines, any operation other than
emergency operation, maintenance and testing, and operation in non-emergency situations for 50 hours per year, as permitted in
this section is prohibited.
If you operate and maintain your certified emergency stationary SI internal combustion engine and emissions control systems in
accordance to the specifications and guidelines in this Owner’s Manual EPA will not require engine performance testing. If not,
your engine will be considered non-certified and you must demonstrate compliance according to Subpart JJJJ – Standards of Per-
formance for Stationary Spark Ignition Internal Combustion Engines as listed in the Electronic Code of Federal Regulations Title 40
Part 60.
Emission-Related Installation Instructions
Your certified emergency stationary engine has pre-set emission control systems or components that require no adjustment. In-
spection and replacement of an emissions related component is required to be done so in accordance with the requirements cited
in the United States Environmental Protection Agency Warranty Statement or can be arranged by contacting your selling dealer
or a Generac Authorized Warranty Service dealer, 888-GENERAC (888-436-3722) or www.generac.com for the dealer nearest you.
Failing to follow these instructions when installing a certified engine in a piece of nonroad equipment violates federal law 40 CFR
1068.105 (b), subject to fines or penalties as described in the Clean Air Act.
Part 2
Part No. 0H1916 Rev A

Part No. 0H8358 Revision F (05/10/11) Printed in U.S.A.

Enfriado por aire de 8, 10, 14, 17 & 20kW
Generadores automáticos de respaldo
Manual del propietario
L
I
S
T
E
D
CU
S
43

Introducción .............................................. 45
Lea este manual completamente .............................................45
Reglas de seguridad ................................. 45
Contenido ............................................................................45
Operación y mantenimiento .................................................45
Cómo obtener servicio.........................................................45
Índice de estándares ............................................................47
Información general .................................. 48
1.1 Desempaque/inspección ..............................................48
1.2 Sistemas de protección ................................................48
1.3 Requerimiento de NEC para interrupción de circuito
por falla de arco interruptor para dormitorios ................48
1.4 Información de emisiones ............................................49
1.5 El generador .................................................................50
1.6 Especificaciones ..........................................................51
1.7 Listo para funcionar......................................................52
1.8 Requerimientos y recomendaciones de combustible .....52
1.9 Consumo de combustible .............................................52
1.10 Reconfiguración del sistema de combustible.................53
1.11 Ubicación .....................................................................54
1.12 Requerimientos de batería ............................................55
1.13 Instalación de la batería ................................................55
1.14 La batería .....................................................................57
1.15 Cargador de baterías ....................................................57
Arranque luego de la instalación y
ajustes ........................................................ 58
2.1 Activación del generador ..............................................58
2.2 Antes del arranque inicial ..............................................58
2.3 Revisar operación de interruptor de transferencia ..........58
2.4 Revisión eléctricas .......................................................58
2.5 Pruebas del generador bajo carga .................................60
2.6 Revisión de la operación automática .............................60
Operación .................................................. 61
3.1 Interfaz del panel de control ..........................................61
3.2 Operación de transferencia automática .........................62
3.3 Secuencia de operación automática ..............................62
3.4 Operación de transferencia manual ...............................63
3.5 Compartimiento lateral .................................................64
3.6 Sistemas de protección ................................................64
Mantenimiento ........................................... 66
4.1 Fusible .........................................................................66
4.2 Revisar el nivel de aceite de motor ................................66
4.3 Cambio del aceite de motor ..........................................67
4.4 Cambio del limpiador de aire del motor .........................67
4.5 Bujia(s) ........................................................................68
4.6 Mantenimiento de la batería ..........................................69
4.7 Ajuste de claridad de válvula GH-410/GT-530/990/999 ......69
4.8 Sistema de refrigeración ...............................................70
4.9 Atención luego de la inmersión .....................................70
4.10 Protección contra corrosión .........................................70
4.11 Procedimiento fuera de servicio ....................................70
4.12 Agenda de servicio .......................................................72
Detección de fallas .................................... 73
5.1 Guía de detección de problemas ...................................73
Apéndice .................................................... 74
6.1 Navegación en el sistema de menú ...............................74
Garantía ..................................................... 76
Tabla de contenidos
44

45
INTRODUCCIÓN
Gracias por comprar este generador compacto impulsado por motor,
refrigerado por aire, de alto rendimiento. Está diseñado para proveer
energía eléctrica en forma automática para operar cargas críticas durante
una falla de la electricidad comercial.
Esta unidad está instalada de fábrica en una caja metalica para todo
clima y prevista exclusivamente para su instalación en exteriores. Este
generador operará usando ya sea propano líquido en vapor (LP) o gas
natural (GN). NOTA:
Este generador es adecuado para suministrar cargas residenciales
típicas como motores de inducción (bombas, refrigeradores, aires
acondicionados, chimeneas, etc), componentes electrónicos (com-
putadoras, monitores, televisores, etc.), cargas de iluminación y
microondas.
LEA ESTE MANUAL COMPLETAMENTE
Si alguna parte de este manual no se entiende bien, póngase en contacto
con el concesionario más cercano para conocer los procedimientos de
arranque, operación y servicio.
REGLAS DE SEGURIDAD
A lo largo de esta publicación, y en lo que respecta a las etiquetas y calco-
manías fijadas en el generador, los bloques de PELIGRO, ADVERTENCIA,
CUIDADO Y NOTA se usan para alertar al personal sobre instrucciones
especiales sobre una operación en particular que puede ser peligrosa si
se ejecuta en forma incorrecta o sin cuidado. Obsérvelas con cuidado.
Sus definiciones son como sigue:
PELIGRO
INDICA UNA SITUACIÓN PELIGROSA O ACCIÓN QUE, SI NO SE EVITA,
TRAERÁ COMO RESULTADO LA MUERTE O UN DAÑO SERIO.
ADVERTENCIA
Indica una situación peligrosa o acción que, si no se evita, podría
traer como resultado la muerte o un daño serio.
CUIDADO
Indica una situación peligrosa o acción que, si no se evita, puede
traer como resultado un daño menor o mo-derado.
NOTA:
Las notas contienen información adicional importante para un proced-
imiento y se les encontrará dentro del cuerpo de este manual.
Estas advertencias de seguridad no pueden eliminar los peligros que
indican. El sentido común y un estricto cumplimiento de las instrucciones
especiales cuando se realiza la acción o servicio son esenciales para
evitar accidentes.
Cuatro símbolos de seguridad usados comúnmente acompañan los
bloques de PELIGRO, ADVERTENCIA y CUIDADO. El tipo de información
que cada uno indica es como sigue:
n Este símbolo señala importante información de seguridad que,
si no se sigue, puede poner en peligro la seguridad personal
y/o las propiedades de otros.
Este símbolo indica un peligro potencial de explosión.
Este símbolo indica un peligro potencial de incendio.
Este símbolo indica un peligro potencial de choque eléctrico.
El operador es responsable del uso apropiado y seguro de este equipo. El
fabricante recomienda encarecidamente que el operador lea este Manual
de Propietario y entienda completamente todas las instrucciones antes de
usar este equipo. El fabricante asimismo recomienda con igual firmeza el
instruir a otros usuarios para arrancar y operar apropiadamente la unidad.
Esto los prepara si necesitan operar el equipo en alguna emergencia.
CONTENIDO
Este manual contiene información pertinente al propietario de estos
modelos:
7 kW NG, 8 kW LP, motor de un cilindro GH-410•
9 kW NG, 10 kW LP, motor V-twin GH-530•
13 kW NG, 14 kW LP, motor V-twin GH-990•
16 kW NG, 17 kW LP, motor V-twin GH-990•
18 kW NG, 20 kW LP, motor V-twin GH-999•
OPERACIÓN Y MANTENIMIENTO
Es responsabilidad del operador el realizar todos los chequeos de
seguridad, asegurarse de que se haya realizado adecuadamente todo el
mantenimiento para una segura operación, y hacer revisar periódicamente
el equipo por un concesionario. El normal mantenimiento y reemplazo de
piezas son de responsabilidad del propietario/operador y, como tal, no se
considera defectos de material ni mano de obra dentro de los términos de
la garantía. Los hábitos individuales de operación y uso contribuyen a la
necesidad de servicio de mantenimiento.
Un mantenimiento apropiado y el cuidado del generrador aseguran un
número mínimo de problemas y mantienen los gastos operativos al
mínimo. Consulte a su concesionario para que lo ayude en el servicio y
con los accesorios.
CÓMO OBTENER SERVICIO
Cuando el generador requiere servicio o repuestos, busque ayuda con el
concesionario. Los técnicos de servicio están capacitados en fábrica y
son capaces de manejar todas las necesidades de servicio.
Al ponerse en contacto con un concesionario respecto a repuestos y ser-
vicio, siempre proporcione el número de modelo y de serie de la unidad
tal como está en la calcomanía de datos, ubicada en el generador. Vea la
ubicación de la calcomanía en la sección de “El Generador”.
Modelo No._____________________ Serie No. ________________
Muestra de etiqueta de datos
Instrucciones de seguridad importantes

46
Estudie estas REGLAS DE SEGURIDAD con cuidado antes de instalar,
operar o dar servicio a este equipo. Familiarícese con este Manual del
propietario y con la unidad. El generador puede operar en forma segura,
eficiente y confiable sólo si se le instala, se le opera y mantiene en forma
apropiada. Muchos accidentes son causados por no seguir reglas o pre-
cauciones simples y fundamentales.
El fabricante no puede anticipar todas las posibles circunstancias que
puedan involucrar peligros. Las advertencias en este manual y en las
etiquetas y calcomanías fijadas en la unidad son, por tanto, no comple-
tamente inclusivas. Si se usa un procedimiento, método de trabajo o
técnica de operación que el fabricante no recomienda específicamente,
asegúrese de que sea seguro para los demás. Asimismo asegúrese que
el procedimiento, método de trabajo o técnica de operación utilizada no
vuelva inseguro al generador.
PELIGRO
n A despecho del muy seguro diseño de este
generador, el operar este equipo en forma
imprudente, con deficiente mantenimiento o
en forma descuidada, puede causar posibles
daños o la muerte. Permita sólo que personas
responsables y capaces instalen, operen y
den mantenimiento a este equipo.
Estas máquinas generan voltajes potencial-
mente letales. Asegúrese de que se haya
tomado todos los pasos para hacer la máqui-
na segura antes de intentar trabajar en el
generador.
n Partes del generador están girando y/o cali-
entes durante la operación. Tenga mucho
cuidado en las cercanías de los generadores
en funcionamiento.
n La instalación debe siempre cumplir con los
códigos, estándares, leyes y regulaciones
aplicables.
n Un generador en funcionamiento expele
monóxido de carbono, un gas venenoso sin
color ni aroma. La inhalación de monóxido
de carbono puede causar dolor de cabeza,
fatiga, mareos náuseas, vómitos, ataques o
muerte.
PELIGROS GENERALES
Por razones de seguridad, el fabricante recomienda que a este equipo se le • dé servicio, sea instalado y reparado por un concesionario de servicio u otro
electricista calificado o un técnico de instalación competente que esté famil-
iarizado con los códigos, estándares y regulaciones aplicables. El operador
también debe cumplir estos códigos, estándares y regulaciones.
Los humos del escape del motor contienen monóxido de carbono, • que puede ser MORTAL. Este gas peligroso, si se aspira en concen-
traciones suficientes, puede hacerle perder la conciencia y causarle la
muerte. NO altere ni agregue nada al sistema de escape ni haga nada
que pueda volver inseguro al sistema o que no cumpla con los códigos
y estándares aplicables.
Instale una alarma de monóxido de carbono operada con baterías en • los interiores, de acuerdo a las recomendaciones e instrucciones del
fabricante.
El flujo adecuado y sin obstrucciones de aire para ventilación y • refrigeración es crítico para la correcta operación del generador. No
altere la instalación ni permita que haya siquiera un bloqueo parcial
de la provisión de ventilación, ya que esto puede afectar seriamente la
operación segura del generador. El generador DEBE ser instalado y
operado sólo en exteriores.
Mantenga las manos, pies, ropa, etc, lejos de las correas de tracción, • ventiladores y otras partes móviles o calientes. Nunca retire correa
de tracción alguna o protección de ventilador mientras la unida esté
operando.
Al trabajar con este equipo, manténgase alerta en todo momento. • Nunca trabaje en el equipo cuando esté física o mentalmente fati-
gado.
Inspeccione el generador con regularidad, y póngase en contacto • con el concesionario más cercano si necesita repararlo o conseguir
repuestos.
Antes de realizar cualquier mantenimiento al generador, desconecte los • cables de su batería para evitar un arranque accidental. Desconecte
primero el cable del borne de la batería indicado como NEGATIVO,
NEG; o (-) y luego retire el cable POSITIVO, POS o (+). Al reconec-
tar los cables, conecte el cable POSITIVO primero, luego el cable
NEGATIVO al final.
Nunca use el generador ni alguna de sus partes como escalón. • Pararse sobre la unidad puede tensar y romper partes, y puede traer
como resultado condiciones peligrosas de operación como escape de
gases, combustible o aceite.
PELIGROS DEL ESCAPE
El escape del motor del generador contiene el MORTAL monóxido de • carbono, un gas venenoso sin olor ni color. El inhalar el monóxido de
carbono puede causar: mareos, dolor de cabeza, náuseas, espas-
mos musculares, vómitos, debilidad y somnolencia, incapacidad de
pensar claramente, desvanecimientos, inconciencia e inclusive la
muerte. Si usted expermienta cualquier síntoma de envenenamiento
por monóxido de carbono, vaya a un lugar con aire fresco y busque
atención médica inmediata.
Nunca opere el generador con el vehículo dentro de algún garaje u • otras áreas cerradas.
PELIGROS ELÉCTRICOS
Todos los generadores cubiertos por este manual producen voltajes • eléctricos peligrosos y pueden causar descargas eléctricas fatales.
El servicio eléctrico doméstico entrega voltajes altos y peligrosos al
interruptor de transferencia como lo hace el generador cuando está
en operación. Evite el contacto con cables pelados, terminales conex-
iones, etc. mientras la unidad está funcionando. Asegúrese que todas
las cubiertas, protecciones y barreras apropiadas se encuentren en
su lugar y/o bloqueadas antes de operar el generador. Si es necesario
trabajar alrededor de una unidad en operación, párese sobre una
superficie seca y aislada para reducir el peligro de choque eléctrico.
No manipule ningun tipo de dispositivo eléctrico mientras esté de pie • sobre agua, con los pies descalzos o con las manos o pies húmedos.
PUEDE HABER UNA DESCARGA ELÉCTRICA COMO RESULTADO.
n GUARDE ESTAS INSTRUCCIONES – El fabricante sugiere que estas reglas para la operación segura se copien y publiquen cerca del sitio
de instalación de la unidad. Debe insistirse en la seguridad para todos los operadores y potenciales operadores de este equipo.
Instrucciones de seguridad importantes

47
El Código Eléctrico Nacional (NEC) requiere que el marco y las partes • externas que son conductores eléctricos estén conectadas a una conexión
a tierra aprobada. Los códigos eléctricos locales pueden asimismo requerir
una apropiada conexión a tierra del sistema eléctrico del generador.
Luego de instalar este sistema de respaldo eléctrico doméstico, el • generador puede arrancar en cualquier momento sin advertencia.
Cuando esto ocurra, los circuitos de carga son transferidos a la fuente
de energía de RESPALDO (generador). Para evitar daños posibles si
ocurren tales arranques y transferencias, siempre coloque el interrup-
tor de AUTO/OFF/MANUAL del generador en su posición OFF antes de
trabajar en el equipo y retire los fusibles de 15A del panel de control
del generador.
En caso de un accidente causado por descarga eléctrica, apague inme-• diatamente la fuente de energía eléctrica. Si esto no es posible, intente
liberar a la víctima del conductor vivo. EVITE EL CONTACTO DIRECTO
CON LA VÍCTIMA. Une un implemento no conductivo, como una soga
seca o una tabla, para liberar a la víctima del conductor vivo. Si la víc-
tima está inconsciente, aplique los primeros auxilios y consiga ayuda
médica inmediatamente.
Nunca use joyas al trabajar con este equipo. Las joyas pueden con-• ducir electricidad y traer como resultado una descarga eléctrica, o
puede quedar atrapada en los componentes móviles.
PELIGRO DE INCENDIO
Para mayor seguridad contra incendios, el generador debe instalarse y • mantenerse en forma apropiada. La instalación debe siempre cum-
plir con los códigos, estándares, leyes y regulaciones aplicables.
Adhiérase esctríctamente a los códigos nacionales, estatales y
locales de electricidad y construcción. Cumpla con las regulaciones
que la Administración de salud y seguridad ocupacional (OSHA) ha
establecido. Asimismo asegúrese de que el generador sea instalado
de acuerdo con las instrucciones y recomendaciones del fabricante.
Luego de una instalación apropiada, no haga nada que pueda alterar
una segura instalación ni hacer que la unidad no cumpla con los men-
cionados códigos, estándares, leyes y regulaciones.
Tenga un extinguidor cerca al generador en todo momento. Los extin-• guidores marcados “ABC” por la Asociación nacional de protección
contra incendios son los apropiados para usarse en los sistemas
eléctricos de emergencia. Mantenga el extinguidor apropiadamente
cargado y familiarícese con su uso. Consulte su departamento local
de bomberos cualquier duda respecto a los extinguidores.
PELIGRO DE EXPLOSIÓN
No fume alrededor del generador. Limpie cualquier derrame de com-• bustible o aceite inmediatamente. Asegúrese de que no haya dejado
materiales combustible en el compartimiento del generador, en o cerca
del generador, ya que pueden causar INCENDIOS y/o EXPLOSIONES.
Mantenga el área circundante del generador limpia y libre de desper-
dicios.
Los fluidos gaseosos como el gas natural y el gas propano líquido • (GLP) son extremadamente explosivos. Instale el sistema de abas-
tecimiento de combustible de acuerdo a los códigos aplicables para
combustible y gas. Antes de colocar el sistema de respaldo eléctrico
de respaldo en servicio, las líneas del sistema de combustible deben
purgarse apropiadamente y buscar fugas de acuerdo al código apli-
cable. Luego de la instalación, inspeccione el sistema de combustible
periodicamente en busca de fugas. No se permiten fugas.
ÍNDICE DE ESTÁNDARES
En ausencia de los estándares, códigos, regulaciones o leyes
pertinentes, la información publicada listada abajo puede usarse
como guía para la instalación de este equipo.
1. NFPA No. 37, STATIONARY COMBUSTION ENGINES AND
GAS TURBINES, disponible en la National Fire Protection
Association, 470 Atlantic Avenue, Boston, MA 02210.
2. NFPA No. 76A, ESSENTIAL ELECTRICAL SYSTEMS FOR
HEALTH CARE FACILITIES, disponible igual que el Item 1.
3. NFPA No. 54, NATIONAL FUEL GAS CODE, disponible igual
que el Item 1.
4. NFPA No. 58, AMERICAN NATIONAL STANDARD FOR
STORAGE AND HANDLING OF LIQUEFIED PETROLEUM GAS,
disponible igual que el Item 1.
5. NFPA No. 70, NFPA HANDBOOK OF NATIONAL ELECTRIC
CODE, disponible igual que el Item 1.
6. Article X, NATIONAL BUILDING CODE, disponible en la
American Insurance Association, 85 John Street, New York,
N.Y. 10038.
7. AGRICULTURAL WIRING HANDBOOK, disponible en la Food
and Energy Council, 909 University Avenue, Columbia, MO
65201.
8. ASAE EP-3634, INSTALLATION AND MAINTENANCE OF
FARM STANDBY ELECTRICAL SYSTEMS, disponible en la
American Society of Agricultural Engineers, 2950 Niles Road,
St. Joseph, MI 49085.
9. NFPA No. 30, FLAMMABLE AND COMBUSTIBLE LIQUIDS
CODE, disponible igual que el Item 1.
ADVERTENCIA PROPOSICIÓN 65 DE CALIFORNIA
El Estado de California sabe que el escape del motor y algunos
de sus componentes causan cáncer, defectos de
nacimiento y otros daños reproductivos.
ADVERTENCIA PROPOSICIÓN 65 DE CALIFORNIA
Este producto contiene o emite químicos que el Estado
de California sabe que causan cáncer, defectos de
nacimiento u otros daños reproductivos.
Instrucciones de seguridad importantes

PELIGRO
n Solo electricistas o contratistas calificados
deberán intentar estas instalaciones, que
deben cumplir estrictamente con los códigos
estándares y regulaciones aplicables.
1.1 DESEMPAQUE/INSPECCIÓN
Luego del desempaque, inspeccione cuidadosamente si hay daños en el
contenido.
Este generador de respaldo está listo para su instalación con una • almohadilla base pre montada y proporcionada de fábrica y tiene una
caja protectora contra el clima que está diseñada para la instalación
en exteriores solamente.
Este generador de respaldo listado por la UL puede empacarse con • un interruptor de transferencia automática con un centro de cargas
incorporado. La combinación de interruptor de transferencia y centro
de cargas está pre-cableada con un conductor de dos pies y 30 pies.
Los interruptores de circuido para conexiones de circuito de emergen-
cia están incluidos (si está equipado con ellos).
Este interruptor de dos polos listado en la UL nominalmente es de • 100 o 200 amperios AC a un máximo de 250 voltios. El interuptor de
transferencia de 100 Amp es para uso en interiores únicamente. El
interruptor de transferencia de 200 Amp es para uso en exteriores/
interiores (si está equipado con él).
ADVERTENCIA
Si este generador se usa para energizar cir-
cuitos de carga eléctrica normalmente ener-
gizados por una fuente de energía de servicio
público, el código requiere que se instale un
interruptor de transferencia. El interruptor
de transferencia debe aislar efectivamente el
sistema eléctrico del sistema de distribución
de energía pública cuando el generador está
operando (NEC 700, 701 & 702). El no aislar un
sistema eléctrico de esa manera traerá como
resultado daños al generador y también puede
causar daños o la muerte a los trabajadores del
servicio público eléctrico debido a una reali-
mentación de la energía eléctrica.
Si se nota alguna pérdida o daños el momento de la entrega, haga que la
persona que entrega la carga tome nota de todos los daños en la guía de
embarque o coloque su firma debajo del memo del consignatario sobre
pérdida o daños.
Si se nota una pérdida o daño luego de la entrega, separe los materiales
dañados y póngase en contacto con el transportista para los procedimien-
tos de reclamo.
“Daño oculto” se entiende como el daño al contenido de un paquete que
no se evidencia al momento de la entrega, pero se descubre luego.
Para abrir apropiadamente el techo, presione sobre el labio superior
central y libere el pestillo. Si la presión no se aplica desde arriba, el techo
puede parecer atascado. Siempre verifique que el cierre lateral esté abi-
erto antes de intentar levantar el techo.
1.2 SISTEMAS DE PROTECCIÓN
A diferencia del motor de un automóvil, el generador puede que tenga
que funcionar por largos periodos de tiempo sin operador presente para
monitorear las condiciones del motor. Por esta razón, el motor está
equipado con los siguientes sistemas que lo protegen contra condiciones
potencialmente dañinas:
1. Sensor de bajo nivel de aceite 6. Batería baja
2. Sensor de alta temperatura 7. Baja frecuencia
3. Falla de arranque 8. Bajo voltaje
4. Exceso de velocidad 9. Sobrevoltaje
5. Senso de RPM 10. Falla interna
Existen lecturas sobre el panel de control para notificar al personal que
na de estas fallas ha ocurrido. Existe un mensaje de estatus en la pantalla
que muestra cuando todas las condiciones descritas en la sección “listo
para funcionar” son verdaderas.
1.3 REQUERIMIENTO DE NEC
PARA INTERRUPTOR DE CIR-
CUITO POR FALLA DE ARCO
PARA DORMITORIOS
En 2001, el Código Eléctrico Nacional (MEC) presentó un requerimiento
para una nueva construcción. Este nuevo requerimiento indica la necesi-
dad de usar interruptores de circuito de falla de arco para proteger la
rama completa del circuito que alimenta el dormitorio de una vivienda. El
requerimiento del NEC se indica abajo.
1.3.1 SECCIÓN 210.12 PROTECCIÓN POR
INTERRUPTOR DE CIRCUITO PARA FALLA DE
ARCO
1. Definición: Un interruptor de circuito para falla de arco es un dis-
positivo cuyo propósito es proporcionar protección de los efectos
de fallas de arco reconociendo las características únicas del arco y
procediendo a desenergizar el circuito cuando se detecta una falla
de arco.
2. Dormitorios de viviendas: Todos los circuitos ramales que sumin-
istran 125 voltios, con salidas de 12 y 20 amperios monofásicos
instaladas en dormitorios de viviendas serán protegidas por un
interruptor de circuito de falla de arco listado para proporcionar
protección al ramal competo del circuito.
La Sección 210.12 requiere que se proporcione protección AFCI a los
circuitos ramales que suministran salidas (receptáculos, iluminación,
etc.) en dormitorios de viviendas. El requerimiento se limita a circuitos de
15 y 20 amperios de 125 voltios. No hay prohibicion contra proporcionar
protección AFCI en otros circuitos o en ubicaciones diferentes a los dor-
mitorios. Debido a que los circuitos frecuentemente se comparten entre
un dormitorio y otras áreas como armarios y pasillos, el proporcionar
protección AFCI sobre el circuito completo cumpliría con la 210.12.
48
Información General

49
Si durante la instalación de un sistema de respaldo para la casa se toma
la decision de proporcionar energía de respaldo a un circuito ramal de dor-
mitorio, el interruptor de circuito en el interruptor de transferencia deberá
reemplazarse con un interruptor de circuito de falla de arco (AFCI).
Es muy importante que los interruptores sólo se reemplacen con otro
similar. POr ejemplo, si se reemplaza un interruptor de 15A, DEBE ser
reemplazado con un interruptor AFCI de 15 A. Del mismo modo, un inter-
ruptor de 20A DEBE ser reemplazado con un AFCI de 20A.
Estos interruptores AFCI están disponibles en la ferretería más cercana.
Item # Descripción
Q115AF 15A polo único AFCI
Q120AF 20A polo único AFCI
1.4 INFORMACIÓN DE EMISIONES
La agencia de protección ambiental requiere que este generador cumpla
con los estándares de emisión en el escape. Este generador está certifri-
cado para cumplir los niveles de emisión de EPA aplicables. Información
adicional respecto a los requerimientos puestos por EPA a continuación:
El generador está certificado para usarse como motor estacionario para
generación de energía de respaldo. Cualquier otro uso puede ser una
violación de leyes federales y/o locales. Es importante que usted siga las
especificaciones en la sección de mantenimiento para asegurar que su
motor cumple con los estándares de emisión aplicables por la duración de
la vida del motor. Este motor está certificado para operar con combustible
de propano líquido y gas natural. El sistema de control de emisiones del
generador consiste en lo siguiente:
Sistema de medición de combustible•
Ensamble del carburador/mezclador•
Regulador de combustible•
Sistema de inducción de aire•
Tubería/distribuidor de entrada•
Limpiador de aire•
Sistema de ignición•
Bujías•
Módulo de ignición•
El período de cumplimiento de emisiones mencionado en la etiqueta de
cumplimiento de emisiones indica el número de horas de operación para
las que el motor ha demostrado cumplir los requerimientos de emisión
federales. Vea la tabla abajo para determinar el periodo de cumplimiento
para el generador. El desplazamiento del generador está listado en la
etiqueta de cumplimiento de emisiones.
Desplazamiento Categoría Período de cumplimiento
< 66 cc
A 300 horas
B 125 horas
C 50 horas
66 cc -
< 225 cc
A 500 horas
B 250 horas
C 125 horas
225 cc
A 1000 horas
B 500 horas
C 250 horas
Información General

50
1.5 EL GENERADOR
Etiqueta de
datos (ver
muestra)
Varilla de
Aceite
Caja del
escape
Base compuesta Filtro de aceite Compartimiento de batería
Regulador
de combustibl
e
Entrada
de combustible
(atrás)
Filtro
de aire
Interruptor
de circuito
Panel de
control
Etiqueta
de datos
(ver muestra)
Varilla de
aceite
Caja del
escape
Base compuesta Filtro de aceite Compartimiento de batería
Regulador
de combustible
Entrada de
combustible
(atrás)
Filtro de aire Interruptores
de circuito
Panel de
control
Figura 1.3 – 14, 17, y 20kW, motor V-twin,
GT-990/GT-999 (puerta retirada)
Figura 1.1 – 8kW, Cilindro único, motor GH-410 (puerta
retirada)
Etiqueta de
datos
(ver muestra)
Varilla de
aceite
Caja del
escape
Base compuesta Filtro de aceite Compartimiento de batería
Regulador
de combustibl
e
Entrada de
combustible
(atrás)
Filtro
de aire
Interruptor
de ciercuito
Panel de
control
Figura 1.2 – 10kW, V-twin, motor GT-530
(puerta retirada)
Muestra de etiqueta de datos
Información General

51
1.6 ESPECIFICACIONES
1.6.1 GENERADOR
Modelo 8kW 10kW 13kW 14kW 16kW 17kW 20kW
Voltaje nominal 240
Corriente de carga máxima
nominal (amps) a 240 voltios
(LP)*
33.3 41.6 54.1 58.3 66.6 70.8 83.3
Interruptor principal de circuito 35 Amp 45 Amp 55 Amp 60 Amp 65 Amp 65 Amp 100 Amp
Circuitos** 50A, 240V - - 1 - 1 1 -
40A, 240V - 1 1 1 1 1 -
30A, 240V 1 1 - - - - -
20A, 240V 1 - 1 1 1 1 -
20A, 120V 3 3 4 6 5 5 -
15A, 120V 3 5 4 4 5 5 -
Fase 1
Número de polos del rotor 2
Frecuencia nominal AC 60 Hz
Requerimiento de batería
Grupo 26R, 12
Volts y 350 CCA
Mínimo
Grupo 26R, 12 Volts y 525 CCA Mínimo
Peso (unidad solamente en
lbs.) 340 387 439 439 439 455/421 450
Caja Acero Acero Acero Acero Acero Acero/aluminio Aluminio
Rango normal de operación
Esta unidad está probada de acuerdo a los estándares UL 2200 con una temperatura de operación de entre 20ºF (-29ºC) y 122ºF (50ºC). Para áreas donde las
temperaturas caigan debajo de los 32ºF (0ºC) se recomienda un kit de clima frío. Cuando se le opera por encima de los 77ºF (25ºC) puede haber una disminución
de la potencia del motor. (Por favor consulte la sección de especificaciones del motor).
Estos generadores han sido calibrados de acuerdo a UL2200, Safety Standard for Stationary Engine Generator Assemblies; y CSA-C22.2 No. 100-04 Standard for Motors and Generators.
* Los valores de gas natural dependerán del contenido de BTUs del combustible específico. Los desgastes típicos están entre 10-20% fuera del valor nominal de gas LP.
** Los circuitos a moverse deben estar protegidos por un interruptor del mismo tamaño. Por ejemplo, un circuito de 15 amps en elpanel principal debe ser un circuito de 15 amperios en el inter-
ruptor de transferencia.
1.6.2 MOTOR
Modelo 8 kW 10 kW 13/14/16/17 kW 20 kW
Tipo de motor GH-410 GT-530 GT-990 GT-999
Número de cilindros 1 2 2 2
Potencia nominal en caballos @ 3.600
rpm*
14.8 18 32 36
Desplazamiento 410cc 530cc 992cc 999cc
Bloque del cilindro Aluminio con manga de hierro forjado
Arreglo de válvulas Válvulas elevadas
Sistema de ignición Estado sólido c/magneto
Bujía recomendada RC14YC BPR6HS RC14YC RC12YC
Espaciamiento de la bujía 0.76 mm (0.762 mm) 0.76 mm (0.762 mm) 1.02 mm (1.016 mm) 0.76 mm (0.762 mm)
Razón de compresión 8.6:1 9.5:1 9.5:1 9.5:1
Arrancador 12 VCC
Capacidad de aceite incluyendo filtro Aprox. 1.5 Qts Aprox. 1.7 Qts Aprox. 1.9 Qts Aprox. 1.9 Qts
Filtro del Aceite recomendado Parte # 070185F
Filtro de aire recomendado Parte # 0G3332 Parte # 0E9581 Parte # 0C8127 Parte # 0G5894
RPM en operación 3,600
* La potencia del motor está sujeta a, y limitada por, factores tales como contenido en BTUs del combustible, temperatura ambiental y altitud. La potencia del motor disminuye alrededor del 3.5%
por cada 1000 pies sobre el nivel del mar, y también disminuirá alrededor del 1% por cada 6ºC (10ºF) por encima de los 16ºC (60ºF) de temperatura ambiente.
Información General

1.7 LISTO PARA FUNCIONAR
El “listo para funcionar” en la pantalla está listo cuando todas las
siguientes condiciones son verdaderas:
1. El interruptor AUTO/OFF/MANUAL está puesto en la posición de
AUTO.
2. El voltaje de la red pública que se suministra a la unidad está siendo
sensado por el PCB. Si el voltaje sensado de la red pública no está
conectado a la unidad o si sen encuentra debajo de aproximada-
mente 150-160 VAC, entonces el sistema mostrará el mensaje “no
hay electricidad comercial presente”. Esto indica que si el interruptor
AUTO/OFF/MANUAL está colocado en la posición Auto, el generador
arrancará.
3. No hay alarmas presentes, por ejemplo, baja presión de aceite, alta
temperatura, etc.
1.8 REQUERIMIENTOS DE
COMBUSTIBLE Y
RECOMENDACIONES
Con gas LP, use sólo el sistema de entrega de vapor. Este tipo de
sistema usa los vapores formados encima del combustible líquido en el
tanque de almacenamiento.
El motor ha sido adaptado con un sistema de carburación de combustible
que cumple las especificaciones de la 1997 California Air Resources
Board para sistemas de combustible dual a prueba de aperturas. La uni-
dad funcionará a gas natural o gas LP, pero ha sido configurado de fábrica
para funcionar a gas natural. Si la necesidad de combustible primario
se cambia a gas LP, el sistema de combustible necesita reconfigurarse.
Las instrucciones para la reconfiguración del sistema de combustible se
encuentran en la sección de reconfiguración de sistema de combustible.
Los combustibles recomendados deberán tener un contenido de BTU de
al menos 1,000 BTUs por pie cúbico para gas natural, o al menos 2,520
BTUs por pie cúbico para gas LP. Pregunte al proveedor de combustible el
contenido del BTUs del mismo.
La presión del combustible requerida para gas natural es de cinco (5)
pulgadas a siete (7) pulgadas de columna de agua (de 0.18 a 0.25 psi);
y para propano líquido de 10 pulgadas a 12 pulgadas de columna de
agua (de 0.36 a 0.43 psi). El regulador primario para el suministro de
propano NO SE INCLUYE con el generador.
NOTA:
Todo el dimensionamiento de las tuberías, construcción y dis-
posición deben cumplir con la NFPA 54 para aplicaciones de
gas natural y NFPA 58 para aplicaciones de propano líquido.
Una vez que el generador está instalado, verifique que la
presión de combustible NUNCA caiga debajo de cuatro (4) pul-
gadas de columna de agua para gas natural o 10 pulgadas de
columna de agua para propano líquido.
Antes de la instalación del generador, el instalador deberá consultar a
sus proveedores locales de combustible o al departamento de bomberos
para revisar los códigos y regulaciones para una apropiada instalación.
Los códigos locales obligarán a una correcta ruta de la tubería de línea
de combustible gaseoso alrededor de jardines, arbustos y otros paisajes
para evitar algún daño.
Se debe tener consideraciones especiales al instalar la unidad donde las
condiciones locales incluyan inundaciones, tornados, huracanes, terre-
motos y suelos inestables en cuanto a la flexibilidad y fuerza de la tubería
y sus conexiones.
Use un sellador de tubería aprobado o compuesto de junturas en todos
los accesorios.
Todas las tuberías de combustible gaseoso instaladas deben ser purgadas
y probadas contra fugas antes del arranque inicial de acuerdo con los
códigos locales, estándares y regulaciones.
1.9 CONSUMO DE COMBUSTIBLE
Unidad
Gas nat. Vapor de LP
1/2 carga Carga
completa
1/2 carga Carga
completa
7/8 kW 77 140 0.94/34 1.68/62
9/10 kW 102 156 1.25/46 1.93/70
13/13 kW 156 220 1.55/57 2.18/80
13/14 kW 156 220 1.56/58 2.30/84
16/16 kW 183 261 1.59/58 2.51/91
16/17 kW 183 261 1.61/59 2.57/94
18/20 kW 206 294 1.89/69 2.90/106
* El gas natural está en pies cúbicos por hora.
** LP está en galones por hora/pies cúbicos por hora.
*** Valores aproximados.
Verifique que el medidor de gas es capaz de proporcionar suficiente flujo
de combustible para incluir aparatos domésticos.
1.9.1 REQUERIMIENTOS DE FLUJO DE BTU - GAS
NATURAL
Flujo de BTU requerido para cada unidad en base a 1000 BTUs por pie
cúbico.
7kW — 140,000 BTU/Hora•
9kW — 156.000 BTU/Hora•
13kW — 220.000 BTU/Hora•
16kW — 261,000 BTU/Hora•
18kW — 294.000 BTU/Hora•
PELIGRO
Los fluidos gaseosos como el gas natural y
el gas propano líquido (GLP) son altamente
explosivos. Aun la más ligera chispa puede
encender tales combustibles y causar una
explosión. No se permiten fugas de combus-
tible. El gas natural, que es más ligero que el
aire, tiende a juntarse en áreas altas. El gas
LP es más pesado que el aire y tiende a des-
cansar en áreas bajas.
NOTA:
Se debe instalar un mínimo de una válvula de cierre manual
aprobada en la línea de suministro de combustible gaseoso.
La válvula debe ser fácilmente accesible. Los códigos locales
determinan la ubicación apropiada.
52
Información General

53
1.10 RECONFIGURACIÓN DEL
SISTEMA DE COMBUSTIBLE
1.10.1 MOTOR DE 8 KW, 410CC
Para reconfigurar el sistema de combustible de GN a GLP, siga los
siguientes pasos (Figura 1.4).
NOTA:
El regulador primario para el suministro de propano NO SE
INCLUYE con el generador. SE DEBE SUMINISTRAR una presión
de 10 a 12 pulgadas de columna de agua (0.36 a 0.43 psi) a la
entrada de combustible del generador.
1. Apague el suministro principal del gas (si está conectado).
2. Abra el techo y retire la puerta.
3. Retire la batería (si está instalada).
4. Tome el manubrio T de plástico selector de combustible en la bolsa
plástica suministrada con el generador.
5. Ubique la perilla selectora en la cubierta de la caja de aire, detrás de
la puerta del filtro de aire amarillo y el bulto de energía. La unidad
viene de fábrica en posición de gas natural. Agarrando el manubrio
en T, inserte el extremo del pasador en el agujero en la perilla selec-
tora y tire hacia afuera para vencer la presión del resorte y luego gire
en sentido horario 90 grados y deje que el selector retorne una vez
alineado con la posición de LP.
6. Guarde esta herramienta con el manual del propietario.
7. Instale la batería, la puerta y cierre el techo (tapa).
8. Invierta el proceso para convertir de regreso a gas natural.
Figura 1.4 – Selector de combustible
NOTA:
Use un sellador o compuesto para juntas de tuberías aprobado
en todos los accesorios para reducir la probabilidad de fugas.
1.10.2 MOTORES DE 10, 14, 17 Y 20KW, V-TWIN
Para reconfigurar el sistema de combustible de GN a GLP, siga los
siguientes pasos. NOTA:
El regulador primario para el suministro de propano NO SE
INCLUYE con el generador. SE DEBE SUMINISTRAR una presión
de 10 a 12 pulgadas de columna de agua (0.36 a 0.43 psi) a la
entrada de combustible del generador.
1. Abra el techo (tapa).
2. Para unidades de 10kW: Suelte la abrazadera y deslice hacia atrás
la manguera de ingreso de aire.
Deslice el selector de combustible en el carburador hacia afuera y • atrás de la caja (Figuras 1.5 y 1.6).
Regrese la manguera de entrada y ajuste la abrazadera en forma • segura.
Para unidades de 14, 17 y 20kW: retire la cubierta del limpiador de
aire.
Deslice la palanca selectora hacia afuera y atrás de la caja (Figuras • 1,7 y 1,8).
Regrese la cubierta del limpiador de aire y ajuste los dos tornillos.•
Figura 1.5 - 10kW, GT-530 (manguera de entrada
deslizada atrás)
Palanca de
selección de
combustible -
posición para
gas natural
Figura 1.6 - 10kW, GT-530 (manguera de entrada
deslizada atrás)
Palanca de
selección de
combustible -
Posición para
propano líquido
Información General

54
3. Cierre el techo (tapa).
4. Invierta el proceso para convertir de regreso a gas natural.
Figura 1.7 - 14, 17, y 20kW,
GT-990/GT-999 (cubierta de caja de aire retirada)
Palanca de sel. de combustible - Posición “In” para GN
Figura 1.8 - 14, 17, y 20kW,
GT-990/GT-999 (cubierta de caja de aire retirada)
Palanca de selección de combustible -
Posición “fuera” para gas propano líquido
1.11 UBICACIÓN
PELIGRO
n Los humos del escape del motor contienen
monóxido de carbono, que puede ser
MORTAL. Este gas peligroso, si se aspira en
concentraciones suficientes, puede hacerle
perder la conciencia y causarle la muerte.
Este generador debe instalarse en forma
apropiada, en cumplimiento estricto de los
estándares y códigos aplicables. Luego de
la instalación, no haga nada que pueda volv-
er el sistema inseguro, o que no cumpla con
tales códigos y estándares.
Opere el generador en exteriores
SOLAMENTE.
• Evite que los gases del escape ingresen a un
área confinada a través de ventanas, puertas,
ventiladores, espacios de arrastre u otras
aberturas (Figura 1.9).
• Es altamente recomendado que se instale
detectores de monóxido de carbono en inte-
riores de acuerdo a las instrucciones y reco-
mendaciones del fabricante.
• El generador debe ser montado en forma segu-
ra según los códigos aplicables y las especifi-
caciones del fabricante. NO altere ni agregue
nada al sistema de escape ni haga nada que
pueda volver inseguro al sistema de escape o
que no cumpla con los códigos y estándares
aplicables.
1.11.1 GENERADOR
Instale el generador en su caja protectora, en exteriores, donde haya
siempre disponible adecuada refrigeración y aire de ventilación (Figure
1.9). Considere estos factores:
La instalación del generador • debe cumplir estrictamente con los
estándares NFPA 37, NFPA 54, NFPA 58, y NFPA 70.
Instale la unidad donde las aberturas de entrada y salida no se vean • obstruidas por hojas, césped, nieve, etc. Si los vientos prevalecientes
causan movimientos, considere el uso de un cortavientos para pro-
teger la unidad.
Instale el generador en cierta altura donde los niveles de agua no lo • alcancen ni lo pongan en peligro.
Deje suficiente espacio a los lados del generador para mantenimiento • y servicio. Esta unidad debe instalarse de acuerdo con los estándares
aplicables actuales NFPA 37 y NFPA 70 así como cualquier otro código
federal, estatal y local sobre distancias mínimas desde otras estruc-
turas. NO instale bajo plataformas de madera o estructuras a menos
que haya al menos cuatro (4) pies de claridad sobre el generador, tres
(3) pies de claridad a los lados y al frente y 18 pulgadas de claridad
en la parte trasera.
Instale la unidad donde no exista flujo de descarga de canaletas de llu-• via, tejados, irrigación de paisajes, regaderas o sumideros que mojen
la unidad o su cubierta, incluyendo las aberturas de entrada y salida.
Instale la unidad donde los servicios no se vean afectados u obstrui-• dos, incluyendo servicios disimulados, subterraneos o cubiertos
como los eléctricos, de combustibles, teléfonos, aire acondicionado
o irrigación.
Donde los vientos fuertes soplen en una dirección, coloque el genera-• dor con la entrada de aire en dirección a los vientos.
Instale el generador lo más cerca posible a la fuente de combustible, • para reducir la longitud de los tubos.
Instale el generador lo más cerca posible del interruptor de transferen-• cia. RECUERDE QUE LAS LEYES O CÓDIGOS PUEDEN REGULAR LA
DISTANCIA Y UBICACIÓN.
El equipo debe instalarse en una superficie nivelada. El marco base • debe estar nivelado dentro de dos (2) pulgadas alrededor.
Información General

55
El generador se coloca típicamente sobre gravilla o piedra chancada. • Revise los códigos locales si se necesita bloques de concreto. Si se
requiere una base de bloque de concreto, se debe seguir todos los
códigos federales, estatales y locales. Se debe dar atención especial
al bloque base de concreto que deberá exceder la longitud y ancho
del generador por un mínimo de 6 (seis) pulgadas (0.152 metros) a
todos lados.
Figura 1.9 – Claridades del generador
1.11.2 GUÍAS DE INSTALACIÓN PARA GENERADORES
ESTACIONARIOS ENFRIADOS POR AIRE DE 8,
10, 14, 17 Y 20 KW.
La National Fire Protection Association tiene un estándar para la insta-
lación y uso de motores de combustión estacionarios. Ese estándar es el
NFPA 37 y sus requerimientos limitan el espacio de un generador cerrado
de una estructura o pared (Figura 1.10).
NFPA 37, Sección 4.1.4, Motores ubicados en exteriores. Los motores y
sus cajas a prueba del clima si se provee, que se instalan en exteriores,
deberán ubicarse al menos a 5 pies de las aberturas en paredes y al
menos 5 pies de las estructuras que tienen paredes combustibles. No
se requerirá una separación mínima donde existan las siguientes condi-
ciones:
1. La pared adyacente de la estructura tiene una resistencia al fuego de
al menos una hora.
2. La caja a prueba de clima está construida de materiales no com-
bustibles y se ha demostrado que un incendio dentro de la caja no
encenderá los materiales combustibles fuera de la caja.
Anexo A — Material explicativo
A4.1.4 (2) Los medios para demostrar cumplimiento son a través
de una prueba de fuego a escala completa o por procedimientos de
cálculo.
Debido a los espacios frecuentemente limitados disponibles para la insta-
lación, se ha hecho aparente que la excepción (2) sería beneficioso para
muchas instalaciones residenciales y comerciales. Con ello en mente, el
fabricante contrató un laboratorio de pruebas independiente para llevar a
cabo pruebas de fuego a escala completa para asegurar que la caja no
encenderá materiales combustibles fuera de la caja.
El criterio era determinar el peor caso de escenario de incendio dentro
del generador y determinar la vulnerabilidad al fuego de los ítems fuera
de la caja del motor e diferentes distancias. La caja está construida de
materiales no combustibles y los resultados y conclusiones del laborato-
rio independiente de pruebas indicaron que cualquier fuego dentro de la
caja del generador no supondrá ningún riesgo de ignición a combustible o
estructuras cercanas, con o sin respuesta de personal de servicio contra
incendios.
En base a estas pruebas y los requerimientos de NFPA 37 Sec 4.1.4, las
guías para la instalación de los generadores listadas arriba se cambian a
18 pulgadas (457 mm) desde el lado trasero del generador a una pared o
edificio estacionario. Para un adecuado mantenimiento y claridad de flujo
de aire, el área encima del generador deberá estar al menos a 4 pies, con
un mínimo de 3 pies al frente y extremos de la caja. Esto incluirá árboles,
arbustos y vegetación que pudiera obstruir el flujo de aire. Vea el diagrama
al reverso de esta página y el dibujo de instalación dentro del manual del
propietario para mayores detalles.
El escape del generador contiene gases MORTALES de monóxido de
carbono. Este peligroso gas puede causar pérdida de conciencia o la
muerte. No coloque la unidad cerca de ventanas, puertas, entradas de aire
fresco (chimeneas, etc) ni ninguna abertura en el edificio o estructura,
incluyendo ventanas y puertas de un garaje cercano.
ADVERTENCIA
Si el interruptor AUTO/OFF/MANUAL no
está en la posición OFF, el generador puede
arrancar tan pronto como se conecten los
cables de la batería. Si la fuente de energía
pública no está apagada, puede ocurrir chis-
porroteo en los postes de la batería y causar
una explosión.
1.12 REQUERIMIENTOS DE
BATERÍA
Consulte en la sección de especificaciones el tamaño y valores
correctos de la batería.
1.13 INSTALACIÓN DE LA BATERÍA
Llene la batería con el fluido electrolítico apropiado si es necesario y tenga
la batería totalmente cargada antes de instalarla.
Antes de instalar y conectar la batería, complete los siguientes pasos:
1. Ponga el interruptor de AUTO/OFF/MANUAL del generador en OFF.
2. Apague la energía pública del interruptor de transferencia.
3. Retire el fusible de 7.5A del panel de control del generador.
Los cables de batería se conectan en fábrica al generador (Figura 1.11).
Conecte los cables a los bornes de la batería como sigue:
4. Conecte el cable rojo de la batería (desde el contactor del arranca-
dor) al borne de la batería indicado con un signo positivo, POS o
(+).
5. Conecte el cable negro de la batería (desde la tierra del marco) al
borne de la batería indicado con un signo negativo, NEG o (+).
6. Instale las cubierrtas de los postes de batería (incluídas).
NOTA:
Deberá usarse grasa dieléctrica sobre los bornes de la batería
para ayudar a evitar la corrosión.
Información General

56
Figura 1.10 – Guías de instalación
18 pulgadas
Distancia mínima
36 pulgadas
36 pulgadas 36 pulgadas
60 pulgadas 60 pulgadas
Pared existente
No se permiten aberturas ni ventanas en la pared dentro de los
5 pies desde cualquier punto del generador.
Tope del generador
60 pulgadas mínimo
60 pulgadas, mínimo
recomendado desde los
extremos
18 pulgadas
mínimo
Generador
La distancia desde las
ventanas, puertas,
cualquier abertura en la
pared, arbustos o
vegetación mayor que
12 pulgadas en altura
La distancia desde los extremos y el
frente del generador debe ser 36 pulg.
Esto incluirá arbustos, árboles y
cualquier tipo de vegetación. La
distancia arriba deberá ser un mínimo
de 60 pulgadas desde cualquier
estructura, colgante o proyecciones de
la pared. El generador no deberá
colocarse bajo una plataforma u otra
estructura que este cerrada y limite o
contenga el flujo de aire.
Estas guías se basan en pruebas con
fuego de la caja del generador y los
requerimientos de flujo de aire del
fabricante para la operación apro-
piada. Los códigos locales pueden ser
diferentes y más restrictivos que lo
que se describe aquí.
Este dibujo sustituye a las instrucciones de instalación en todas las instalaciones refrigeradas por aire y los
manuales de propietario con fechas anteriores al 26 de mayo de 2007.
Información General

57
Figura 1.11 – Conexiones de cable de la batería
PUNTA NEGRA
(DESDE EL MARCO
PUNTA ROJA
(DESDE EL CONTACT
DEL ARRANCADOR)
ROJO
BATERÍA
NEGRO
NOTA:
Puede haber daños si las conexiones de la batería se hacen al
revés.
NOTA:
En áreas donde las temperaturas regularmente caen debajo
de 32° F (0° C) se recomienda que se instale un calentador de
batería tipo almohadilla para ayudar al arranque en clima frío.
1.14 LA BATERÍA
PELIGRO
No arroje la batería al fuego. La batería
puede explosionar.
Una batería presenta un riesgo de choque
eléctrico y una gran corriente de cortocircu-
ito. Las siguientes precauciones serán obser-
vadas al trabajar con baterías:
• Retire el fusible de 7.5A del panel de control
del generador.
• Sáquese los relojes, anillos y otros objetos de
metal.
• Use herramientas con manubrios aislados.
• Use guantes y botas de goma.
• No deje herramientas ni partes metálicas enci-
ma de la batería.
• Desconecte la fuente de carga antes de conectar
o desconectar los terminales de la batería.
ADVERTENCIA
n No abra ni mutile la batería. El electrolítico
liberado es dañino para la piel y ojos y es
tóxico.
n El electrolito es ácido sulfúrico diluido que
es dañino para la piel y los ojos. Es conduc-
tor eléctrico y corrosivo.
Se debe observar los siguientes procedimientos:
• Usar protección de ojos completa y ropa pro-
tectora.
• Donde haya contacto del electrolito con la piel,
láve inmediatamente con agua.
• Donde haya contacto del electrolito con los
ojos, enjuegue completa e inmediatamente con
agua y busque atención médica.
• El electrolito derramado debe lavarse con un
agente neutralizador de ácido. Una práctica
común es usar una solución de 1 libra (1/2
kilo) de bicarbonato de sodio en 1 galón (4
litros) de agua. La solución de bicarbonato de
sodio se debe añadir hasta que la evidencia de
la reacción (espuma) haya cesado. El líquido
resultante debe enjuagarse con agua y el área
deberá secarse.
Las baterías de plomo-ácido presentan ries-
go de fuego porque generan gas hidrógeno.
Se debe seguir los siguientes procedimien-
tos:
• NO FUME cerca de la batería.
• NO haga fuego ni chispas en el área de la bat-
ería.
• Descargue la electricidad estática del cuerpo
antes de tocar la batería, tocando primero una
superficie metálica conectada a tierra.
n Asegúrese que el interruptor AUTO/OFF/
MANUAL se encuentre en la posición de OFF
antes de conectar los cables de la batería. Si
el interruptor se coloca a AUTO o MANUAL,
el generador puede arrancar tan pronto
como se conectan los cables de batería.
Asegúrese de que el suministro público de
electricidad esté apagado y que el fusible
de 7.5A esté fuera del panel de control del
generado, ya que puede ocurrir una chispa
en los bornes de la batería ya que los cables
están juntos y causar una explosión.
El servicio de la batería deberá ser realizado o supervisado por personal
que conozca de baterías y las precauciones requeridas. Mantenga al per-
sonal no autorizado lejos de las baterías.
Consulte en la sección de especificaciones el tamaño y valores cor-
rectos al reemplazar la batería Estos procedimientos deben realizarse a
intervalos especificados en la “Agenda de servicio”. Se usa un sistema de
tierra negativa. Las conexiones de la batería se muetran en los diagramas
de cableado. Asegúrese que la batería esté correctamente conectada
y los terminales estén ajustados. Observe la polaridad de la batería al
conectarla al generador.
1.15 CARGADOR DE BATERÍAS
NOTA:
El cargador de baterías está integrado en el módulo de control en todos
los modelos.
Opera como “cargador inteligente” que asegura que la salida es continu-
amente optimizada para promover la máxima vida de la batería y que los
niveles de carga estén en condiciones seguras.
NOTA:
Hay una advertencia en la pantalla LCD cuando la batería
necesita servicio.
Información General

58
2.1 ACTIVACIÓN DEL
GENERADOR
Cuando se aplica la energía de la batería al generador durante el proceso
de instalación, el controlador se iluminará. Sin embargo, el generador aún
necesita activarse antes de que funcione automáticamente en el caso de
un apagón eléctrico.
La activación del generador es un proceso simple de un solo paso que es
guiado por los requerimientos de la pantalla del controlador. Una vez que
el producto está activado, la pantalla del controlador no lo pedirá nueva-
mente, aún si se desconecta la batería del generador.
Luego de obtener su código de activación, por favor complete los
siguientes pasos en el panel de control del generador en la cartilla de
activación.
2.2 ANTES DEL ARRANQUE
INICIAL
NOTA:
Estas unidades han funcionado y han sido probadas en la
fábrica antes de ser embarcadas y no requieren ningún tipo de
entrada forzada.
NOTA:
Esta unidad viene llena con aceite de fábrica. Revise el nivel de
aceite y agregue la cantidad apropiada si es necesario.
Antes de arrancar, complete lo siguiente:
1. Fije el interruptor principal del circuito en su posición OFF (o en
OPEN).
2. Ponga el interruptor de AUTO/OFF/MANUAL en la posición OFF.
3. Apague todos los interruptores en el centro de cargas de la caja de
transferencia (T1 y T2).
4. Apague todas las cargas conectadas a los terminales T1 y T2 del
interruptor de transferencia.
5. Revise el nivel de aceite en el cárter del motor, y si es necesario,
llene hasta que la varilla marque FULL con el aceite recomendado.
No llene por encima de la marca FULL.
6. Revise el suministro de combustible. Las líneas de combustible
gaseoso deben haber sido purgadas en forma apropiada y sin fugas
comprobadas de acuerdo con los códigos aplicables de gas com-
bustible. Todas las válvulas de cierre en las líneas de abastecimiento
de combustible deben estar abiertas.
Sólo durante el arranque inicial, el generador puede exceder el número
normal de intentos de arranque y experimentar una falla de sobre-arranque
(ver la sección de “sobre-arranque”) Esto se debe al aire acumulado en
el sistema de combustible durante la instalación. Reinicie el tablero de
control y reinicie hasta dos veces más si es necesario. Si la unidad no
arranca, contacte a su concesionario local.
CUIDADO
n Nunca opere el motor con el nivel de aceite
por debajo de la marga “Add” (agregar) de
la varilla. Esto puede dañar el motor.
2.3 REVISE LA OPERACIÓN
DEL INTERRUPTOR DE
TRANSFERENCIA
Consulte los procedimientos en la sección “Operación de transferencia
manual” del manual de propietario.
PELIGRO
No intente una operación manual del inter-
ruptor de transferencia hasta que todos los
suministros de voltaje al interuptor de trans-
ferencia hayan sido positivamente apagados.
El no apagar todas las fuentes de voltaje
traerá como resultado un choque eléctrico
extremadamente peligroso y posiblemente
fatal.
2.4 REVISIONES ELÉCTRICAS
Complete los chequeos eléctricos de esta manera:
1. Fije el interruptor principal del circuito en su posición OFF (o en
OPEN).
2. Ponga el interruptor de AUTO/OFF/MANUAL en la posición OFF.
3. Apague todos los interruptores en el centro de cargas de la caja de
transferencia (T1 y T2).
4. Encienda el suministro de energía pública al interruptor de transfer-
encia usando los medios provistos (como un interrutpor de línea
principal pública).
PELIGRO
El interruptor de transferencia está ahora
eléctricamente “caliente”. El contacto con
partes “Calientes” puede traer como resul-
tado un choque eléctrico extremadamente
peligroso y posiblemente fatal. Proceda con
cuidado.
5. Use un voltímetro AC exacto para revisar la fuente de energía pública
a través de los terminales del interruptor de transferencia N1 y N2. El
voltaje nominal de línea a línea deberá ser 240 volts AC.
6. Revise el voltaje de la fuente de energía pública a través de los ter-
minales N1 y la oreja neutral del interruptor de transferencia, luego a
través del terminal N2 y el neutro. El voltaje nominal de línea a neutro
deberá ser 120 volts AC.
7. Cuando esté seguro de que el voltaje de la fuente de energía pública
sea compatible con los valores del interruptor de transferencia y el
circuito de carga, apague la fuente de energía pública al interruptor
de transferencia.
8. En el panel del generador, coloque el interruptor de Auto/Off/Manual
en MANUAL. El motor deberá arrancar.
9. Deje calentar al motor por alrededor de cinco minutos para dejar
estabilizar las temperaturas internas. Luego, fije el interruptor princi-
pal del circuito en su posición ON (o cerrado).
Arranque luego de la instalación y ajustes

59
CARTILLA DE ACTIVACIÓN
ELEGIR IDIOMA DETECCIÓN DE FALLAS
La pantalla dice: Use las teclas de FLECHA para llegar al idi-
oma deseado. Presione ENTER para selec-
cionar.
Si se elige el idioma incorrecto, se le puede
cambiar posteriormente usando el menú de
“edición”.
La pantalla dice: Presione ENTER para empezar el proceso de
activación.
Si se presiona ESCAPE en lugar de ENTER,
su generador sólo funcionará en modo manual
(para propósitos de prueba) y se mostrará NO
ACTIVADO. Tendrá que quitar el fusible del panel
de control del generador y desconecte el T1, N1 y
N2 conector en la caja de conexión externa (si está
instalado), o desconectar la entrada de servicios
públicos (interruptor principal) para el interrup-
tor de transferencia de 5.3 segundos y vuelva a
conectar, a continuación, comience por el paso 1.
La pantalla dice: Si no tiene su código de activación,
vaya a www.activate.com o llame al
1-888-9ACTIVATE (922-8482).
Si ya tiene su código de activación, espere
de 3 a 5 segundos la siguiente pantalla.
INGRESAR CÓDIGO DE ACTIVACIÓN (contraseña) DETECCIÓN DE FALLAS
La pantalla dice: Use las teclas de FLECHA para navegar y
encontrar el primer número de su código de
activación.
Presione ENTER para seleccionar.
Repita este paso hasta que todos los dígitos
hayan sido ingresados.
Use ESCAPE para corregir los dígitos ante-
riores.
La pantalla dice: La activación está completa cuando todos
los dígitos se hayan ingresado arriba y su
pantala muestra esto.
Siga los pedidos del controlador para seguir
configurando la función de tiempo. Consulte
su manual del propietario si tiene preguntas.
¿Qué sucede si aparece “contraseña errada,
intente nuevamente”?
Reingrese el código de activación. Si un
segundo intento es infructuoso, revise el
número contra el código entregado en acti-
vategen.com. Si es correcto y el generador
no lo acepta, póngase en contacto con el
1-888-9ACTIVATE (922-8482).
“SELECC HORA (0-23)”
“- +”6
Escape Enter
Serie 123456789
Contraseña XXXXX +/-
Escape Enter
Para activar, ir a
www.activategen.com
Escape Enter
Activarme (ENT) o
ESC para manual
Escape Enter
Idioma
- Español +
Escape Enter
Arranque luego de la instalación y ajustes

60
PELIGRO
¡Proceda con cuidado! El voltaje del genera-
dor ahora es proporcionado al interruptor
de transferencia. El contacto con las partes
vivas del interruptor de transferencia traerá
como resultado un choque eléctrico peli-
groso y posiblemente fatal.
10. Conecte un voltímetro AC exacto y un frecuencímetro a través de las
orejas terminales E1 y E2 del interruptor de transferencia. El voltaje
deberá ser 238-242 voltios a una frecuencia de 59,5-60,5 Hertz.
11. Conecte las puntas de prueba del voltímetro AC a través de las orejas
terminales E1 y neutro, luego a través de E2 y neutro. En ambos
casos, la lectura de voltaje deberá ser de 119-121 Voltios AC.
12. Fije el interruptor principal del circuito en su posición OFF (o en
OPEN). Deje el motor correr sin carga por unos minutos para esta-
bilizar las temperaturas internas del motor del generador.
13. Ponga el interruptor de AUTO/OFF/MANUAL en la posición OFF. El
motor debería apagarse.
NOTA:
Es importante no proceder hasta que sea seguro que el voltaje
AC del generador y la frecuencia son las correctas y están den-
tro de los límites indicados.
2.5 PRUEBAS DEL GENERADOR
BAJO CARGA
Para probar el generador con cargas eléctricas aplicadas, proceda como
sigue:
1. Fije el interruptor principal del circuito en su posición OFF (o en
OPEN).
2. Apague todos los interruptores en el centro de cargas de la caja de
transferencia (T1 y T2).
3. Ponga el interruptor de AUTO/OFF/MANUAL en la posición OFF.
4. Apague el suministro de energía pública al interruptor de transfer-
encia usando los medios provistos (como un interrutpor de línea
principal pública).
ADVERTENCIA
No intente una operación manual del inter-
ruptor de transferencia hasta que todos los
suministros de voltaje al interuptor de trans-
ferencia hayan sido positivamente apagados.
El no apagar todas las fuentes de voltaje
traerá como resultado un choque eléctrico
extremadamente peligroso y posiblemente
fatal.
5. Coloque manualmente el interruptor de transferencia en la posición
STAND BY, es decir los terminales de carga conectados a los termi-
nales E1/E2 del generador. La palanca de operación del interruptor
de transferencia deberá estar abajo.
6. Ponga el interruptor de AUTO/OFF/MANUAL en la posición MANUAL.
El motor deberá arrancar inmediatamente.
7. Deje que el motor se estabilice y caliente por unos minutos.
8. Fije el interruptor principal del circuito en su posición ON (o en
CLOSED). Las cargas ahora están energizadas por el generador de
respaldo.
9. Encienda el centro de cargas del interruptor de transferencia (T1 y
T2).
10. Conecte un voltímetro AC exacto y un frecuencímetro a través de las
orejas terminales E1 y E2.
El voltaje deberá ser mayor a 240 voltios y la frecuencia deberá ser • de 60 Hz.
11. Deje el generador funcionando a plena carga por 20 o 30 minutos.
Escuche si hay ruidos inusuales, vibraciones u otras indicaciones
de operación anormal. Revise si hay fugas de aceite, evidencia de
sobrecalentamiento, etc.
12. Cuando la prueba con carga esté completa, apague las cargas eléc-
tricas.
13. Fije el interruptor principal del circuito en su posición OFF (o en
OPEN).
14. Deje funcionar al motor sin carga por unos minutos.
15. Ponga el interruptor de AUTO/OFF/MANUAL en la posición OFF. El
motor debería apagarse.
2.6 REVISANDO LA OPERACIÓN
AUTOMÁTICA
Para revisar la apropiada operación automática del sistema, proceda
como sigue:
1. Fije el interruptor principal del circuito en su posición OFF (o en
OPEN).
2. Revise que el interruptor de AUTO/OFF/MANUAL se encuentre en la
posición OFF.
3. Apague el suministro de energía pública al interruptor de transfer-
encia usando los medios provistos (como un interrutpor de línea
principal pública).
4. Coloque manualmente el interruptor de transferencia en la posición
UTILITY, es decir los terminales de carga conectados al lado de la
fuente de energía pública.
5. Encienda el suministro de energía pública al interruptor de transfer-
encia usando los medios provistos (como un interrutpor de línea
principal pública).
6. Fije el interruptor principal del circuito en su posición ON (o en
CLOSED).
7. Ponga el interruptor de AUTO/OFF/MANUAL en la posición AUTO. El
sistema está ahora listo para operación automática.
8. Apague la energía pública del interruptor de transferencia.
Con el interruptor de AUTO/OFF/MANUAL en AUTO, el motor deberá arran-
car cuando la fuente de energía pública se apaga luego de un retardo de
10 segundos. Luego del arranque, el interruptor de transferencia deberá
conectar los circuitos de carga al lado de respaldo luego de un retardo
de 5 segundos. Deje al sistema ir a través de su secuencia automática
de operación.
Con el generador funcionando y las cargas energizadas por la salida AC
del generador, encienda la fuente de energía pública al interruptor de
transferencia. Puede ocurrir lo siguiente:
Luego de 15 segundos, el interruptor deberá transferir las cargas de • regreso al suministro público de energía.
Luego de un minuto después de la retransferencia, el motor deberá • apagarse.
Arranque luego de la instalación y ajustes

61
3.1 INTERFAZ DEL PANEL DE
CONTROL
3.1.1 USO DEL INTERRUPTOR AUTO/OFF/MANUAL
(FIGURA 3.1)
ADVERTENCIA
n Con el interruptor colocado en AUTO, el
motor puede arrancar en cualquier momento
sin advertencia. Tal arranque automático
ocurre cuando el voltaje de la fuente de
energía pública cae por debajo de un nivel
predeterminado o durante el ciclo de ejer-
cicio normal. Para evitar un posible daño
que puede ser causado por tales arranques
repentinos, siempre coloque el interruptor
en OFF y retire los fusibles antes de trabajar
o estar cerca del generador o del interrup-
tor de transferencia. Luego coloque una eti-
queta de “NO OPERAR” sobre el panel del
generador y sobre el interruptor de transfer-
encia.
1. Posición AUTO – Seleccionar este interruptor activa la operación
totalmente automática del sistema. También permite a la unidad
arrancar automáticamente y ejercitar el motor cada siete días con
los ajustes del temporizador de ejercicios (ver la sección de configu-
ración del temporizador de ejercicios).
2. Posición “OFF” – Esta posición del interruptor apaga el motor. Esta
posición también evita la operación automática.
3. Posición “manual” – Coloque el interruptor en MANUAL para arran-
car el motor. La transferencia a la energía de respaldo no ocurrirá a
menos que haya una falla del servicio público.
3.1.2 FIJANDO EL TEMPORIZADOR DE EJERCICIOS
Este generador está equipado con un temporizador de ejercicios. Una
vez fijado, el generador arrancará y se ejercitará cada siete días, en el día
de la semana y la hora especificada. Durante este periodo de ejercicio, la
unidad funciona aproximadame 12 minutos y luego se apaga. La trans-
ferencia de cargas a la salida del generador no ocurre durante el ciclo de
ejercicios a menos que se pierda la energía pública.
Figura 3.1 – Panel de control del generador de
8/10/14/17 y 20kW
ASISTENTE DE INSTALACIÓN
Característica de pruba propia del sistema de interconexión (siga las
instrucciones en pantalla)
Al encendido, este controlador realizará un auto examen que revisará la
presencia de voltaje de la red pública en los circuitos CC. Esto se hace
para evitar daños si el instalador conecta por error los cables de sensado
de energía de la red pública AC al bloque terminal CC. Si se deflexiona
el voltaje de la red pública, el controlador mostrará una advertencia y
bloqueará el generador, evitando daños al controlador. Debe retirarse la
energía al controlador para apagar esta advertencia.
El voltaje de la red pública debe encenderse y estar presente en los ter-
minales N1 y N2 dentro del panel de control del generador para que se
realice y apruebe este examen.
NOTA:
¡EL DAÑO CAUSADO POR MAL CABLEADO DE LOS CABLES DE
INTERNCONEXIÓN NO ES CUBIERTO POR LA GARANTÍA!
Este examen se realizará cada vez que el controlador se enciende.
En el primer arranque del generador, la interfaz de pantalla empezará el
asistente de instalación. El asistente pedirá al usuario fijar los ajustes
mínimos para operar. Estos ajustes son simples: Fecha/hora actual y día/
hora de ejercicio. Los intervalos de mantenimiento serán inicializados
cuando se ingresa la hora del ejercicio (Figura 3.1).
Los ajustes de ejercicio se pueden cambiar en cualquier momento con el
menú “EDIT” (ver Apéndice, “Sistema del menú”).
Si la batería de 12 voltios está desconectada y el fusible retirado, el
asistente de instalación operará a la restauración de la energía. La única
diferencia es que la pantalla sólo pedira al cliente la fecha y hora actual.
SI EL INSTALADOR PRUEBA AL GENERADOR ANTES DE LA
INSTALACIÓN, PRESIONE LA TECLA “ENTER” PARA EVITAR
CONFIGURAR LA HORA DE EJERCICIO. ESTO ASEGURARÁ QUE
CUANDO EL CLIENTE ENERGICE LA UNIDAD, TODAVÍA SE LE
PEDIRÁ INGRESAR UNA HORA DE EJERCICIO.
NOTA:
El ejercitador sólo funcionará en modo AUTO y no funcionará a
menos que se realice este procedimiento. La fecha/hora actual
necesitará reiniciarse cada vez que la batería de 12 voltios
se desconecte y luego se reconecte, y/o cuando el fusible se
saque.
Ejercicio de baja velocidad
Las unidades de 17 y 20 Kw funcionarán a 2,400 rpm.
Menús de interfaz de pantalla
La pantalla LCD está organizada como se detalla abajo:
La página de “Inicio”, esta página es la página predeterminada que • se mostrará si no se presionan teclas por 30 segundos. Esta página
normalmente muestra el mensaje de estatus actual y la fecha y hora
actuales. La alarma y/o advertencia activa de más alta prioridad se
enviará automáticamente a esta página así como destellará la luz de
fondo cuando tal evento se detecte. En caso de múltiples alarmas o
advertencias, sólo se mostrará el primer mensaje. Para borrar una
alarma o advertencia, vea la sección de sistemas de protección - bor-
rar alarma.
La luz trasera de la pantalla normalmente está apagada. Si el usuario • presiona cualquier tecla, la luz trasera se encenderá automáticamente
y permanecerá encendida por 30 segundos luego de que se presione
la última tecla.
Operación

62
La página de “Menú principal” permitirá al usuario navegar a todas • las otras páginas o sub-menús usando las teclas izquierda/derecha
y Enter. A esta página puede accederse en cualquier momento con
varias presiones de la tecla Escape dedicada. Cada presión de la
tecla Escape lo lleva de regreso al menú previo hasta que se alcance
el menú principal. Esta página muestra las siguientes opciones:
HISTORIA, ESTATUS, EDITAR Y DEPURAR. (Vea el apéndice -
“Sistema de menú”).
3.2 OPERACIÓN DE
TRANSFERENCIA
AUTOMÁTICA
Para seleccionar la operación automática, haga lo siguiente:
1. Asegúrese de que los contactos principales del interruptor de trans-
ferencia estén fen su posición de UTILITY (servicio público), es decir
las cargas conectadas a la energía pública (Figura 3.1).
2. Asegúrese que haya un suministro normal de energía PÚBLICA a las
orejas del interruptor de transferencia N1 y N2 (consulte la sección
de datos eléctricos).
3. Ponga el interruptor de AUTO/OFF/MANUAL del generador en
AUTO.
4. Fije el interruptor principal del circuito en su posición ON (o en
CLOSED).
Con los pasos precedentes completos, el generador arrancará automáti-
camente cuando el voltaje de la energía pública cae debajo de un nivel
predeterminado. Luego de que arranca la unidad, las cargas se transfieren
a la fuente de energía de respaldo. Consulte la sección de Secuencia de
operación automática.
3.3 SECUENCIA DE OPERACIÓN
AUTOMÁTICA
3.3.1 FALLA DE SERVICIO PÚBLICO
Condiciones iniciales: Generador en Auto, listo para funcionar, carga
suministrada por la fuente de energía pública. Cuando el servicio público
falla (por debajo del 60% del nominal), se inicia un retardo de interrupción
de línea de 10 segundos (opcionalmente programable). Si el servicio
público no se restaura cuando el tiempo expira, el motor arrancará. Una
vez arrancado, se inicia un temporizador de 5 segundos para calen-
tamiento del motor. Cuando el temporizador de calentamiento expira, el
control transferirá la carga al generador. Si se restaura el servicio eléctrico
público (por encima del 80% del valor nominal) en cualquier momento
desde la iniciación del arranque del motor hasta que el generador esté listo
para aceptar carga (y el tiempo de calentamiento de 5 segundos no se
ha completado), el controlador completará el ciclo de arranque y llevará
al generador a su ciclo normal de enfriamiento, sin embargo, la carga
permanecerá en el servicio público.
3.3.2 ARRANQUE
El sistema controlará el ciclo de arranque así: 16 segundos de arranque,
siete (7) segundos descanso, 16 segundos de arranque, siete (7) segun-
dos de descanso, seguidos por tres (3) ciclos adicionales de siete (7)
segundos de arranque seguidos por siete (7) segundos de descanso.
Operación del choke
1. Los motores de 990/999cc tienen un choke eléctrico en la caja de
aire que se controla automáticamente por el tablero de control elec-
trónico.
2. Los motores de 530cc tienen un choke eléctrico en la manguera de
ingreso de aire del panel divisor que se controla automáticamente
por el tablero de control electrónico.
3. Los motores de 410cc tienen un choke eléctrico detrás de la caja
de aire que se controla automáticamente por el tablero de control
electrónico.
Falla de arranque
Esto se define como cualquiera de las siguientes ocurrencias durante el
arranque:
1. No se alcanza la soltura del arranque durante el ciclo de arranque
especificado. La soltura del arrancador se define como cuatro (4)
ciclos a 1,000 RPM.
2. Se alcanza la soltura del arranque, pero no se alcanza las 2200 RPM
en 15 segundos. En este caso el tablero de control irá a un ciclo de
descanso por siete (7) segundos, luego continuará el resto del ciclo
de arranque.
Durante un ciclo de descanso las salidas de combustible y arranque son
de-energizadas y la salida del magneto hace corto a tierra.
Condiciones de arranque
Las siguientes notas se aplican durante el ciclo de arranque.
1. El motor del arrancador no engancha dentro de los cinco (5) segun-
dos del apagado del motor.
2. La salida de combustible no está energizada con el arrancador.
3. Las salidas del arrancador y el magneto serán energizadas juntas.
4. Una vez que el arrancador está energizado, el tablero de control
empezará a buscar la rotación del motor. Si no ve una señal RPM
dentro de tres (3) segundos se apagará y se enganchará como
pérdida de sensor RPM.
5. Una vez que el tablero de control ve una señal RPM, energizará
el solenoide de combustible, abrirá el acelerador y continuará la
secuencia de arranque.
6. El motor arrancador se desenganchará cuando la velocidad alcanza
la soltura del arrancador.
7. Si el generador no alcanza los 2200 RPM dentro de los 15 segundos,
ocurrirá un ciclo de re-arranque.
8. Si el motor deja de cambiar entre soltura de arrancador y 2200 RPM,
el tablero irá a un ciclo de descanso por siete (7) segundos y luego
re-arrancará (si existen ciclos adicionales de arranque).
9. Una vez arrancado, el generador esperará un período antes de
empezar a monitorear la presión de aceite y su temperatura (con-
sulte los tiempos de espera en la sección de mensajes de alarma).
10. Durante el arranque manual, si el interruptor de Modo se mueve de
la posición Manual, el arranque se detiene inmediatamente.
11. Duriante el modo Auto, si el servicio público regresa, el ciclo de
arranque NO aborta, sino continua hasta que se completa. Una vez
que el motor arranca, funcionará por un minuto, y luego se apa-
gará.
Operación

63
3.3.3 TRANSFERENCIA DE CARGA
La transferencia de carga cuando el generador está funcionando depende
del modo de operación como sigue:
1. Manual
No transferirá al generador si el servicio público está presente.•
Transferirá al generador si el servicio público falla (debajo del 65% • del nominal por 10 segundos consecutivos.
Transferirá de regreso cuando el servicio público regresa por 15 • segundos consecutivos. El motor continuará funcionando hasta que
salga del modo Manual.
2. Automático
Arrancará y funcionará si el servicio público falla por 10 segundos • consecutivos.
Iniciará un temporizador de calentamiento del motor, de 5 segun-• dos.
No transferirá si el servicio público regresa.•
No transferirá al generador si el servicio público aun no está pre-• sente.
Transferirá de regreso al servicio público una vez que este retorne • (por encima del 75% del nominal) por 15 segundos.
Transferirá de regreso al servicio público si el generador se apaga • por cualquier razón (como que el interruptor esté en posición OFF).
o exista una alarma de apagado.
Luego de la transferencia, se apagará el motor luego de un minuto • de tiempo de enfriamiento.
3. Ejercicio
No ejercitará si el generador está ya funcionando ya sea en modo • Auto o Manual.
Durante el ejercicio, el controlador sólo transferirá si el servicio • público falla durante el ejercicio por 10 segundos, y cambiará a
modo Auto.
3.3.4 SERVICIO PÚBLICO RESTAURADO
Condición inicial: Generador suministrando energía a la carga del cliente.
Cuando el servicio público regresa (por encima del 80% del nominal), se
iniciará un temporizador de 15 segundos de regreso al servicio público.
Al finalizar este temporizador, si el suministro público está aún presente y
es aceptable, el control transferirá la carga de regreso al servicio público
y hará funcionar el motor en un periodo de enfriamiento de un minuto y
luego se apagará. Si el suministro público falla por tres segundos durante
este periodo de enfriado, el control transferirá la carga de regreso al
generador y continuará funcionando mientras monitorea el retorno del
servicio público.
3.4 OPERACIÓN DE
TRANSFERENCIA MANUAL
3.4.1 TRANSFERENCIA A LA FUENTE DE ENERGÍA DEL
GENERADOR
Para arrancar el generador y activar el interruptor de transferencia manu-
almente, proceda como sigue:
1. Ponga el interruptor de AUTO/OFF/MANUAL en la posición OFF.
2. Fije el interruptor principal del circuito en su posición OFF (o en
OPEN).
3. Apague el suministro de energía pública al interruptor de transfer-
encia usando los medios provistos (como un interrutpor de línea
principal pública).
PELIGRO
No intente activar el interuptor de transferencia
manualmente hasta que todos los suministros de
voltaje al interuptor hayan sido positivamente apa-
gados. El no apagar todas las fuentes de voltaje
puede traer como resultado un choque eléctrico
extremadamente peligroso y posiblemente fatal.
4. Use el manubrio de transferencia manual dentro del interruptor de
transferencia para mover los contactos principales a su posición de
STANDBY, es decir las cargas conectadas a la fuente de energía de
respaldo (Figura 3.2).
Figura 3.2 – Operación manual del interruptor de trans-
ferencia
CARGA CONECTADA A SERVICIO PÚBLICO DE ELECTRICIDAD
CARGA CONECTADA A FUENTE DE RESPALDO
MANUBRIO DE TRANSFERENCIA
MANUAL
PALANCA DE OPERACIÓN
DEL INTERRUPTOR DE TRANSFERENCIA
5. Para arrancar el motor, ponga el interruptor de AUTO/OFF/MANUAL
en MANUAL.
6. Deje que el motor se estabilice y caliente por unos minutos.
7. Fije el interruptor principal del circuito en su posición ON (o en
CLOSED). La fuente de energía de respaldo ahora energiza las car-
gas.
3.4.2 TRANSFERENCIA DE REGRESO AL SERVICIO
ELÉCTRICO PÚBLICO
Cuando se ha restaurado el servicio público, transfiera de regreso a esa
fuente y apague el generador. Esto se logra como sigue:
1. Fije el interruptor principal del circuito en su posición OFF (o en
OPEN).
2. Haga funcionar por un minuto o dos sin carga para estabilizar las
temperaturas internas.
3. Ponga el interruptor de AUTO/OFF/MANUAL del generador en la
posición OFF (o en OPEN). El motor debería apagarse.
4. Revise que la energía pública al interruptor de transferencia se
encuentre apagada.
Operación

64
PELIGRO
No intente activar el interuptor de transferen-
cia manualmente hasta que todos los sumin-
istros de voltaje al interuptor hayan sido pos-
itivamente apagados. El no apagar todas las
fuentes de voltaje puede traer como resul-
tado un choque eléctrico extremadamente
peligroso y posiblemente fatal.
5. Use el manubrio de transferencia manual dentro del interruptor de
transferencia para mover los contactos principales a su posición
de UTILITY (servicio público), es decir las cargas conectadas a la
fuente de energía pública (Figura 3.2).
6. Encienda la energía pública al interruptor de transferencia usando los
medios provistos.
7. Coloque el sistema en operación automática como se indica en la
sección Operación de transferencia automática.
3.5 COMPARTIMIENTO LATERAL
(FIGURAS 3.3 Y 3.4)
Los códigos locales pueden requerir que este compartimiento esté cer-
rado. Se proporciona un pestillo para que el propietario pueda asegurar
el compartimiento con su propio candado. Revise los códigos locales en
su área.
3.5.1 INTERRUPTOR PRINCIPAL DEL CIRCUITO
Este es un interruptor de dos polos con valores de acuerdo a la sección
de Especificaciones.
3.5.2 LUCES EXTERIORES DE LISTO
La luz LED verde de ‘Listo’ se enciende cuando el servicio público está • presente y el interruptor está en AUTO indicando que el generador está
listo y cuando el generador está funcionando.
La luz del LED rojo de ‘Alarma’ se enciende cuando el generador • está apagado o se detecta una falla. (Ver la sección de sistemas de
protección).
Luz de LED amarillo de ‘Mantenimiento’ (Ver la sección de sistemas •
de protección.)
3.5.3 SALIDA DE 120 VAC GFCI E INITERRUPTOR DE
15 AMP (17 Y 20 KW SOLAMENTE)
Estos modelos están equipados con una toma GFCI externa de 15 ampe-
rios y 120 voltios que está ubicada en un compartimiento a la derecha
del generador (Figura 1.3).
Cuando el generador está funcionando, en ausencia del servicio público,
esta toma también se puede usar para energizar ítems fuera de su hogar
como luces o herramientas de potencia. Esta toma puede también usarse
cuando la energía pública está presente haciendo funcionar el generador
en modo manual. Esta toma no proporciona energía si el generador no
está funcionando. Esta toma está protegida por un interruptor de circuito
de 15 amperios en el mismo compartimiento que la salida. (No usar
cuando el generador está funcionando en modo de ejercicio).
Figura 3.3 – Compartimiento lateral
Figura 3.4 – Compartimiento lateral abierto
Salida 120V GFCI Interruptor de salida 15 Amp
Interr principal del circuitoLuces LED indicadoras
3.6 SISTEMAS DE PROTECCIÓN
3.6.1 ALARMAS
Prioridad más alta (pestillo) mostrada en el panel de control y el LED
rojo externo. Tienen que anularse antes de que el mensaje de alarma
se vaya. El registro de alarma registra cada ocurrencia (ver Apéndice -
“Sistema de menú”).
Baja presión de aceite (alarma de apagado)
Un retraso de cinco segundos en el arranque y 7 segundos una vez que
el motor está funcionando.
Este interruptor (Figura 3.5) tiene contactos normalmente cerrados que se
mantienen abiertos por la presión de aceite de motor durante la operación.
Si la presión de aceite cae debajo del rango de los 5 PSI, los contactos
del interruptor se cierran y el motor se apaga. La unidad no se reiniciará
hasta que se verifique el nivel de aceite.
Operación

65
Alta temperatura del motor (alarma de apagado – Auto
reinicio)
Un retardo de 10 segundos al arranque y un segundo antes del apagado,
Auto reinicio cuando la condición se apaga y reinicia el motor si hay una
señal válida de arranque presente.
Los contactos del interruptor (Figura 3.5) se cierran si la temperatura
excede aproximadamente 144° C (293° F), iniciando un apagado del
motor. Una vez que la temperatura del aceite cae a un nivel seguro, los
contactos del interruptor se abren otra vez.
Sobrearranque (alarma de apagado)
Esto ocurre si el motor no ha arrancado dentro del ciclo específico de
arranque. (Ver sección “arranque”)
NOTA:
La manguera de drenaje de aciete puede estar ruteada en la
dirección opuesta como se muestra en la figura.
Figura 3.5 – Baja presión de aceite e
interruptores de alta temperatura
Filtro de
aceite
Manguera
de drenaje
de aceite
Interruptor de bajo aceite Interruptor de alta temp
S
o
l
t
a
r
Sobrevelocidad (alarma de apagado)
4320 RPM por tres (3) segundos o 4500 RPM inmediatamente. Esta
característica protege al generador del daño apagándolo si ocurre que
funciona más rápido que el límite predeterminado. Esta protección
también evita que el generador suministre una salida que pudiera dañar
potencialmente aparatos conectados al circuito del generador. Contacte al
concesionario más cercano si ocurre una falla.
Pérdida de sensado de RPM (alarma de apagado)
Durante el arranque, si el tablero de control no ve una señal válida de RPM
dentro de tres segundos, se apagará y bloqueará en la pérdida de sensado
RPM. Mientras el motor está funcionando, si la señal RPM se pierde por
un segundo, el trablero de control apagará el motor, espere 15 segundos
y vuelva a arrancar el motor. Si no hay señal RPM detectada dentro de los
primeros 3 segundos del arranque, el tablero de control apagará el motor
y se enganchará como pérdida de sensado RPM. Si se detecta la señal
RPM, el motor arrancará y funcionará normalmente. Si consiguientemente
la señal RPM se pierde nuevamente, el tablero de control tratará una vez
más de arrancar antes de engancharse y mostrar el mensaje de falla de
sensor RPM.
Baja frecuencia (alarma de apagado)
Luego del arranque, si el generador permanece con baja frecuencia por
más de 30 segundos, se apagará. El ajuste de baja frecuencia es 50 Hz.
Falla interna (alarma de apagado)
Esta alarma no puede apagarse, llame al concesionario de servicio.
Bajo voltaje (alarma de apagado)
Si el voltaje del generador cae por debajo de 60% del nominal por más de
cinco (5) segundos, se apaga.
Sobrevoltaje (alarma de apagado)
Si el voltaje del generador se eleva por encima del 110% del nominal por
más de tres (3) segundos, se emitirá una alarma y la unidad se apagará.
Si el voltaje del generador se eleva por encima del 130% del nominal
por más de tres (0.2) segundos, se emitirá una alarma y la unidad se
apagará.
Cancelar Alarma
Apague la alarma colocando el interruptor de AUTO/OFF/MANUAL en la
posición OFF. Presione la tecla ENTER para desenganchar la falla activa y
apagar el correspondiente mensaje de alarma.
3.6.2 RELÉ DE ALARMA COMÚN
El relé de alarma común se activará si hay una alarma de apagado. No
se activará en advertencias ni indicará que el interruptor de AUTO/OFF/
MANUAL está en la posición OFF. La posición OFF limpiará las alarmas
y el relé. El relé no será usado para indicar que un generador no está
activado.
Los terminales de alarma común están cableados a un juego de contactos
libres de potencial (secos) en el tablero controlador Nexus. Estos contac-
tos normalmente abiertos (N.O.) se cierran cuando ocurre una condición
de alarma y se usan para activar un dispositivo remoto de señalización. El
circuito tiene un máximo nominal de 130mA a 24 VDC.
3.6.3 ADVERTENCIAS
Segunda prioridad (sin pestillo) mostrada en el panel de control y el LED
amarillo externo (sólo V-twins). Las advertencias se apagan automática-
mente cuando la condición monitoreada se aleja. Las advertencias se
registran en el registro de alarmas. Las advertencias no pueden hacer
que el motor se apague.
Batería baja
El tablero de control monitorea el voltaje de la batería y muestra una
advertencia si este cae por debajo de 11.9 voltios por un minuto. La
advertencia se apaga automáticamente si el voltaje de la batería se eleva
encima de los 12.4 voltios. El voltaje de la batería no se monitorea durante
el ciclo de arranque.
Error de ejercicio
Si el periodo de ejercicio se corrompe, se mostrará un mensaje de adver-
tencia. Este mensaje sólo se apagará cuando el periodo de ejercicio se
reinicie.
Operación

66
3.6.4 ALERTAS DE MANTENIMIENTO
Tercera prioridad
Mensaje de mantenimiento
Cuando el periodo de mantenimiento expire, se mostrará un mensaje de
advertencia. La alerta se puede reiniciar presionando la tecla Enter, que
hará que se le pida al usuario confirmar la acción. El reinicio apagará la
alerta y reiniciará los contadores de mantenimiento para todas las condi-
ciones anunciadas. El registro de historial guardará la alerta. El contador
de mantenimiento no se acumulará sin energía de la batería. Una vez que
la energía de la batería se restablezca, se mostrará un pedido para fijar el
tiempo. Los contadores de mantenimiento serán ajustados a una nueva
fecha y hora.
NOTA:
Ya que la mayoría de alertas de mantenimiento ocurrirán al mismo
tiempo (la mayoría tiene intervalos de dos años), sólo uno aparecerá
en la pantalla al mismo tiempo. Una vez que la primera alerta se haya
apagado, la siguiente alerta activa se mostrará.
4.1 FUSIBLE
El fusible de 7.5 amp en el panel de control protege el circuito de control
DC contra sobrecargas (Figuras 3.1 y 3.2). Este fusible está cableado en
serie con la punta de salida de la batería al panel. Si este elemento fusible
está abierto el motor no podrá arrancar. Reemplace este fusible sólo con
un fusible de reemplazo idéntico de 7.5 amperios. Siempre que este fus-
ible se saque o reemplace, el temporizador del ejercicio debe reiniciarse.
4.2 REVISAR EL NIVEL DE ACEITE
DEL MOTOR
Vea en la sección de especificaciones las capacidades de aceite. Vea los
aceites recomendados en la sección de Recomendaciones de aceite de
motor.
Cuando los apagones hacen que se necesite el generador por periodos
extensos de tiempo, el nivel de aceite debe revisarse diariamente.
Para revisar el nivel de aceite del motor, proceda como sigue (Figuras
4.1, 4.2 y 4.3):
1. Si el generador está funcionando durante un apagón, primero apague
todas las cargas asociadas que funcionan en la residencia. Segundo,
gire el interruptor de circuito principal del generador a la posición
OFF.
2. Mueva el interruptor de AUTO/OFF/MANUAL en la posición OFF.
3. Retire la varilla y séquela con un trapo limpio.
4. Inserte completamente la varilla, luego retírela otra vez. El nivel
de aceite deberá estar en la marca “Full” (lleno). Si es necesario,
agregue aceite hasta la marca “Full” solamente. NO LLENE POR
ENCIMA DE LA MARCA “FULL”.
5. Instale la varilla.
6. Vuelva a poner el interruptor de AUTO/OFF/MANUAL en su posición
original.
7. Si el generador estuvo funcionando durante un apagón, gire primero
el interruptor principal del circuito de regreso a la posición ON.
Segundo, encienda las cargas necesarias de la residencia.
CUIDADO
n Nunca opere el motor con el nivel de aceite
por debajo de la marga “Add” (agregar) de
la varilla. Esto puede dañar el motor.
Figura 4.1 — Varilla de aceite y llenado, 8kW
Varilla de aceite y llenado
Figura 4.2 — Varilla de aceite, 10kW
Figura 4.3 — Varilla de aceite y llenado,
14, 17 & 20kW
Varilla de aceite
Llenar
Mantenimiento

4.3 CAMBIO DE ACEITE DE
MOTOR
CUIDADO
n El aceite caliente puede causar quemaduras.
Permita que el motor enfríe antes de drenar
el aceite. Evite una exposición prolongada o
repetida de la piel con el aceite usado. Lave
completamente las áreas expuestas con
jabón.
4.3.1 INTERVALOS DE CAMBIO DE ACEITE
Ver la sección de “Agenda de servicio”.
4.3.2 RECOMENDACIONES DE ACEITE DE MOTOR
Todo aceite debe cumplir el estándar mínimo de la American Petroleum
Institute (API) Service Class SJ, SL o superior. No use aditivos especiales.
Seleccione el aceite de grado de viscosidad apropiado de acuerdo a la
temperatura esperada de operación.
SAE 30 • Î por encima de 32° F
10W-30 • Î Entre 40° F y -10° F
Sintético 5W-30 • Î 10° F y menos
SAE 30
SAE 30
Synthetic 5W-30
Synthetic 5W-30
10W-30
10W-30
Rango de temperaturas de uso esperado
CUIDADO
n Cualquier intento de arrancar el motor antes
de que se le haya dado servicio apropiado
con el aceite recomendado puede traer
como resultado una falla del motor.
4.3.3 PROCEDIMIENTO DE CAMBIO DE ACEITE Y
FILTRO
Para cambiar el aceite, proceda como sigue:
1. Arranque el motor moviendo el interruptor de AUTO/OFF/MANUAL
a MANUAL y hágalo funcionar hasta que caliente completamente.
Luego apague el motor moviendo el interruptor a la posición OFF:
2. Inmediatamente luego de que el motor se apaga, liberte el pasador
de retén de la manguera de drenaje de aceite (Figura 4.4). Retire la
tapa de la manguera y drene el aceite a un contenedor apropiado.
3. Luego de que el aceite haya drenado, vuelva a colocar la tapa al
extremo de la manguera de drenaje. Retenga la manguera en el
pasador.
Cambie el filtro de aceite como sigue:
1. Con el aceite drenado, retire el filtro antiguo cirándolo en sentido
antihorario.
2. Aplique una ligera capa de aceite de motor limpio a la junta del
nuevo filtro. Ver los filtros recomendados en la sección de especifi-
caciones.
3. Atornille el nuevo filtro a mano hasta que la junta contacte liger-
amnete al adaptador de filtro de aceite. Luego, ajuste el filtro 3/4
adicionales o hasta una vuelta (Figura 4.4).
4. Relllene con el aceite apropiado recomendado (ver la sección de
Recomendaciones de aceite de motor). Ver las capacidades de
aceite en la sección de especificaciones.
5. Arranque el motor, hágalo funcionar por un minuto y revise si hay
fugas.
6. Apague y vuelva a revisar el nivel de aceite del motor, añada si es
necesario. NO LLENE DEMASIADO
7. Vuelva a poner el interruptor de AUTO/OFF/MANUAL en la posición
AUTO.
8. Disponga del aceite usado en un centro de recolección apropiado.
NOTA:
La manguera de drenaje de aciete puede estar ruteada en la
dirección opuesta como se muestra en la figura 4.4.
Figura 4.4 – Manguera de drenaje de aceite y filtro
Filtro de
aceite
Manguera
de drenaje
de aceite
Interruptor de bajo aceite Interruptor de alta temp
S
o
l
t
a
r
4.4 CAMBIO DEL LIMPIADOR DE
AIRE DEL MOTOR
4.4.1 GENERADORES DE 14, 17 Y 20KW
Vea la ubicación del limpiador de aire en la sección “El generador”. Utilice
los siguientes procedimientos (Figura 4.5):
1. Levante el techo y retire la puerta.
2. Gire los dos tornillos en sentido antihorario para soltarlos.
3. Retire la cubierta y el filtro de aire.
4. Limpie el polvo y los residuos dentro de la caja de aire y alrededor
de los bordes.
5. Instale el nuevo limpiador de aire en la caja de aire.
6. Instale la cubierta. Gire los dos tornillos de cubierta en sentido hor-
ario para ajustar.
67
Mantenimiento

68
Vea en la sección de Agenda de servicio el mantenimiento del limpiador de
aire. Vea el número de parte del reemplazo del filtro de aire en la sección
de Especificaciones.
Figura 4.5 — 14, 17 y 20kW
Limpiador de aire del motor
Cubierta
Filtro
Tornillo
4.4.2 GENERADORES DE 10KW
Vea la ubicación del limpiador de aire en la sección “El generador”. Utilice
el siguiente procedimiento (Figura 4,6):
1. Levante el techo y retire la puerta.
2. Gire la abrazadera sin fin en sentido antihorario para soltarla.
3. Tire el filtro antiguo fuera del panel divisor.
4. Limpie el polvo o residuos del panel.
5. Instale el nuevo limpiador de aire en el lugar.
6. Gire la abrazadera sin fin en sentido horario para ajustarla.
7. Vuelva a colocar la puerta y el techo.
Figura 4.6 — Limpiador de aire del motor de 10kW
Filtro de aire
4.4.3 GENERADOR DE 8 KW
Ver la sección de “El Generador” para ubicar la caja de aire. Use los
siguientes procedimientos para reemplazar el filtro de aire sucio dentro de
la caja de aire (Figura 4.7).
1. Levante el techo y retire la puerta.
2. Empuje hacia atrás en el pestillo de la puerta de acceso del filtro de
aire amarillo para abrirla.
3. Tire hacia afuera el filtro de aire antiguo y descarte en forma apro-
piada.
4. Instale el nuevo filtro, el extremo abierto primero dentro de la caja de
aire.
5. Cierre la puerta amarilla y presione hasta cerrar.
6. Reemplace la puerta y cierre el techo en forma segura.
Figura 4.7 — Limpiador de aire del motor de 8kW
Cubierta del
limpiador de aire
4.5 BUJIA(S)
Vuelva a colocar la tapa de la bujía o reemplace la bujía si es necesario.
Vea los requerimientos de mantenimiento en la sección de agenda de
servicio.
1. Limpie el área alrededor de la base de la bujía para sacar el polvo y
la suciedad del motor.
2. Retire la bujía y revise su condición. Reemplace la bujía si está usada
o es imposible volverla a usar. Vea la inspección recomendada en la
sección de agenda de servicio. Limpie usando un cepillo de alambre
y un solvente comercial. No golpee la bujía al limpiarla.
3. Revise el espacio de la bujía usando un calibrador. Ajuste el espacio
a 0.76 mm (0.030 pulg) para 8, 10 y 20kW; y 1.02 mm (0.040 pulg)
para 13, 14, 16 y 17kW doblando con cuidado el electrodo de tierra
(Figura 4.8).
Figura 4.8 – Fijando el espacio de la bujía
Mantenimiento

69
4.6 MANTENIMIENTO DE LA
BATERÍA
La batería deberá inspeccionarse según la sección “Agenda de servicio”.
El siguiente procedimiento deberá seguirse en la inspección:
1. Inspeccione los bornes de la batería, su ajuste y si hay corrosión.
Ajuste y limpie si es necesario.
2. Revise el nivel de fluido de la batería en las batería no selladas y, si
es necesario, rellene con agua destilada solamente. No use agua
corriente en las baterías.
3. Haga revisar el estado de la carga y la condición. Esto deberá hac-
erse con un hidrómetro para baterías de automóviles.
PELIGRO
No arroje la batería al fuego. La batería puede
explotar.
Una batería presenta un riesgo de choque eléc-
trico y una gran corriente de cortocircuito. Las
siguientes precauciones serán observadas al tra-
bajar con baterías:
• Retire el fusible de 7.5A del panel de control del gen-
erador.
• Retire los relojes, anillos y otros objetos metálicos.
• Use herramientas con manubrios aislados.
• Use guantes y botas de goma.
• No deje herramientas ni partes metálicas encima de
la batería ni
• Desconecte la fuente de carga antes de conectar o
desconectar los terminales de la batería.
ADVERTENCIA
n No abra ni mutile la batería. El electrolítico libera-
do es dañino para la piel y ojos y es tóxico.
n El electrolito es ácido sulfúrico diluido que es
dañino para la piel y los ojos. Es conductor eléc-
trico y corrosivo. Se debe observar los siguientes
procedimientos:
• Use protección completa para los ojos y ropa protec-
tora.
• Donde hubo contacto del electrolito con la piel, lave
inmediatamente con agua.
• Donde haya contacto del electrolito con los ojos,
enjuegue completa e inmediatamente con agua y
busque atención médica.
• El electrolito derramado debe lavarse con un agente
neutralizador de ácido. Una práctica común es usar
una solución de 1 libra (1/2 kilo) de bicarbonato de
sodio en 1 galón (4 litros) de agua. La solución de
bicarbonato de sodio se debe añadir hasta que la
evidencia de la reacción (espuma) haya cesado. El
líquido resultante debe enjuagarse con agua y el
área deberá secarse.
Las baterías de plomo-ácido presentan ries-
go de fuego porque generan gas hidrógeno.
Se debe seguir los siguientes procedimien-
tos:
• NO FUME cerca de la batería.
• NO haga fuego ni chispas en el área de la batería y
• Descargue la electricidad estática del cuerpo antes
de tocar la batería, tocando primero una superficie
metálica conectada a tierra.
n Asegúrese que el interruptor AUTO/OFF/
MANUAL se encuentre en la posición de OFF
antes de conectar los cables de la batería. Si
el interruptor se coloca a AUTO o MANUAL,
el generador puede arrancar tan pronto
como se conectan los cables de batería.
Asegúrese de que el suministro público de
electricidad esté apagado y que el fusible
de 7.5A esté fuera del panel de control del
generado, ya que puede ocurrir una chispa
en los bornes de la batería ya que los cables
están juntos y causar una explosión.
4.7 AJUSTANDO LA CLARIDAD
DE LA VÁLVULA ING GH-410/
GT-530/990/999
Luego de las primeras 6 horas de operación, revise la claridad de la
válvula en el motor y ajústela si es necesario.
Importante: Si se siente incómodo al hacer este procedimiento o no tiene
las herramientas apropiadas, por favor contacte al concesionario para
solicitar ayuda. Este es un paso muy importante para asegurar la mayor
vida de su motor.
Para revisar la claridad de la válvula:
El motor deberá estar frío antes de revisarlo. Si la claridad de la válvula • es 0.002” - 0.004” (0.05 - 0.1mm), no es necesario el ajuste.
Retire los cables de la bujía y coloque los cables lejos de sus conex-• iones.
Retire las bujías.•
Asegúrese de que el pistón esté en el centro muerto (TDC o Top Dead • Center) de su recorrido de compresión (ambas válvulas cerradas).
Para colocar el pistón en TDC, retire la pantalla de la toma de ingreso
al frente del motor para tener acceso a la tuerca del volante. Use un
dado grande y una llave de dados para girar la tuerca y el motor en
sentido horario. Mientras mira el pistón a través del agujero de la bujía.
El pistón deberá moverse de arriba a abajo. El pistón está en TDC
cuando está en su más alto punto de recorrido.
Para ajustar la claridad de la válvula (si es necesario), (Figura 4.9):
Asegúrese de que el motor esté a 60° - 80° F.•
Asegúrese de que el cable de la bujía se haya retirado de esta y esté • lejos.
Retire los cuatro tornillos que unen la cubierta de la válvula.•
Suelte la contratuerca del brazo inestable. Utilice una llave allen de • 10mm para girar el taco de bola pivote mientras revisa la claridad
entre el brazo inestable y el vástago de la válvula con un calibrador
graduador. La claridad correcta es de 0.002-0.004 pulgadas (0.05-0.1
mm).
NOTA:
Sostenga la contratuerca del brazo inestable en su lugar mientras se
gira el taco de bola pivote.
Mantenimiento

70
Cuando la claridad de la válvula sea la correcta, sostenga el taco de bola
pivote en su lugar con una llave allen y ajuste la contratuerca del brazo
inestable. Ajuste la contratuerca a un torque de 174 pulg-lib. Luego de
ajustar la contratuerca, vuelva a revisar la claridad de la válvula para
asegurarse de que no cambie.
Instale una nueva junta de cubierta de la válvula.•
Vuelva a unir la cubierta de la válvula.•
Figura 4.9 - Ajuste de claridad de la válvula
Contratuerca
Cuña de bola
pivote
Balancín
Vástago de
válvula
NOTA:
Empiece a ajustar los cuatro tornillos antes del ajuste final o no
será posible poner a todos los tornillos en su lugar. Asegúrese
de que la junta de la cubierta de la válvula esté en su lugar.
Instale las bujías.•
Vuelva a unir el cable de bujía a esta.•
En el GT-530 y GT-990/999, repita el proceso para el otro cilindro.•
4.8 SISTEMA DE ENFRIAMIENTO
Las aberturas de entrada y salida en el compartimiento del generador
deben estar abiertas y sin obstrucciones para una operación contínua
apropiada. Esto incluye obstrucciones como césped alto, malahierba,
arbustos, hojas y nieve.
Sin suficiente enfriamiento y aire de ventilación, el motor/generador se
sobrecalienta rápidamente, lo que causa un apagado rápido. (Vea las
ubicaciones de los respiraderos en la Figura 4.10).
Asegúrese que las puertas y el techo estén en su lugar durante la oper-
ación ya que hacer funcionar el generador sin ellas puede afectar el
movimiento del aire de enfriamiento.
ADVERTENCIA
El escape de este producto se caliente en
extremo y permanece caliente luego del apa-
gado. El césped alto, la malahierba, arbus-
tos, hojas, etc deben permanecer lejos del
escape. Tales materiales pueden encend-
erse y quemarse por el calor del sistema de
escape.
Figura 4.10 – Respiraderos de enfriamiento
CALIENTE
4.9 ATENCIÓN LUEGO DE LA
SUMERSIÓN
Si el generador ha sido sumergido en agua, NO DEBE arrancarse ni oper-
arse. Luego de sumergirse en agua, haga que el concesionario lo limpie
completamente yt lo inspeccione. Si la estructura (o la casa) ha sufrido
una inundación, deberá inspeccionarla un electricista certificado para
asegurarse que no habrá problemas eléctricos durante la operación del
generador o cuando regrese la electricidad pública.
4.10 PROTECCIÓN CONTRA
CORROSIÓN
Lave y encere periódicamente la caja usando productos para automóviles.
Se recomienda un lavado frecuente en lugares costeros y de abundante
sal. Pulverice los enlaces del motor con un aceite ligero como el WD-40.
4.11 PROCEDIMIENTO FUERA DE
SERVICIO
4.11.1 RETIRO DEL SERVICIO
Si el generador no puede ejercitarse siete días y va a estar fuera de servi-
cio por un plazo de 90 días, prepare el generador para su almacenamiento
como sigue:
1. Arranque el motor y déjelo calentar.
2. Cierre la válvula de cierre en la línea de suministro de combustible y
deje que la unidad se apague.
3. Una vez que la unidad se ha apagado, cambie a la posición OFF.
4. Fije el interruptor principal del circuito en su posición OFF (o en
OPEN).
5. Fije el interruptor AUTO/OFF/MANUAL en OFF y apague la energía
de la red pública al interuptor de transferencia. Retire el fusible de
7.5A del panel de control del generador. Desconecte los cables de la
batería como se describe en “Peligros generales”.
6. Mientras el motor está todavía caliente por el funcionamiento,
drene completamente el aceite. Rellene el cárter con aceite. Ver
“Recomendaciones de aceite de motor”.
7. Coloque una etiqueta en el motor indicando la viscosidad y clasifi-
cación del aceite en el cárter.
Mantenimiento

71
8. Retire la bujía y pulverice un agente empañador en las aberturas
roscadas de la(s) bujía(s). Reinstale y ajuste la(s) bujía(s).
9. Retire la bateria y almacénela en un lugar fresco y seco en una caja
de madera. Nunca almacene la batería sobre piso de concreto o
tierra.
10. Limpie el generador completo.
4.11.2 RETORNO AL SERVICIO
Para regresar la unidad al servicio luego del almacenamiento, proceda
como sigue:
1. Verifique que la unidad esté apagada y que el interruptor de AUTO/
OFF/MANUAL esté colocado en OFF.
2. Revise la etiqueta del motor, la viscosidad del aceite y su clasifi-
cación. Verifique que se use el aceite recomendado correcto en el
motor (vea la sección de Recomendaciones de aceite del motor). Si
es necesario, drene y rellene con el aceite apropiado.
3. Revise el estado de la batería. Llene todas las celdas de las baterías
no selladas hasta el nivel apropiado con agua destilada. NO USE
AGUA CORRIENTE EN LA BATERÍA. Recargue la batería al 100 por
ciento de su estado de carga o en su defecto, reemplácela. Vea el
tamaño y tipo en “Especificaciones”.
4. Limpie el generador completo.
5. Asegúrese que se retire el fusible de 7.5A del panel de control del
generador. Reconecte la batería. Observe la polaridad de la batería.
Puede haber daños si la batería se conecta incorrectamente.
6. Abra la válvula de cierre.
7. Inserte el fusible de 7.5A al panel de control del generador. Arranque
la unidad moviendo el interruptor de AUTO/OFF/MANUAL a MANUAL.
Deje calentar la unidad completamente.
8. Deténgala colocando el interruptor de AUTO/OFF/MANUAL en la
posición OFF.
9. Encienda la energía pública a interruptor de transferencia.
10. Ponga el interruptor de AUTO/OFF/MANUAL en la posición AUTO.
11. El generador está ahora listo para el servicio.
NOTA:
Si la batería estaba muerta o desconectada, el temporizador de
ejercicio, la fecha y hora actual deben ser reiniciados.
4.11.3 ACCESORIOS
Tenemos accesorios disponibles para mejorar el rendimiento de los gen-
eradores enfriados por aire.
Kits para climas fríos• se recomiendan en áreas donde las temperatu-
ras regularmente caen por debajo de 32° F (0° C).
Kits de mantenimiento programado• incluyen todas las piezas nec-
esarias para realizar el mantenimiento del generador junto con reco-
mendaciones para el aceite.
Bloqueo de interruptor de transferencia auxiliar• permite a cualquiera
de los interruptores de transferencia bloquear completamente una
carga eléctrica grande con su sistema de control.
Una cubierta tipo faldón• es estándar en todas las unidades de 20kW.
Está disponible para todas las otras unidades enfriadas por aire de
producción actual. Se une para proporcionar una apariencia con-
torneada así como protección contra roedores e insectos.
El sistema de monitor remoto• es una caja inalámbrica montada en
interiores que indica el estatus de funcionamiento del generador y
permite el programa de ejercicios así como proporciona recordatorios
de mantenimiento.
Kits de retoque de pintura• son muy importantes para conservar la
apariencia e integridad de la caja del generador. Estos kits incluyen
pintura para retoques e instrucciones si se necesitara.
Para mayores detalles sobre los accesorios, por favor contacte al conc-
esionario.
Mantenimiento

72
4.12 AGENDA DE MANTENIMIENTO
ATENCIÓN: Se recomienda que todo trabajo de servicio
sea realizado por el concesionario más cercano.
SISTEMA/COMPONENTE PROCEDIMIENTO FRECUENCIA
X = Acción
R = Reemplazar si es necesario
* = Notificar al concesionario si se
necesita reparación.
Inspeccionar Cambiar Limpiar
S = Semanal
M = Mensual
Y = Anual
COMBUSTIBLE
Líneas de combustible y conexiones* XM
LUBRICACIÓN
Nivel de aceite X M o 24 horas de
operación continua.
Aceite X 2Y o 200 horas
de operación.**
Filtro del Aceite X 2Y o 200 horas
de operación.**
ENFRIAMIENTO
Persianas de la caja XXS
BATERÍA
Retire la corrosión, asegurar
sequedad XXM
Limpie y ajuste los terminales de la
batería XXM
Revise el estado de la carga X R CADA 6M
Nivel del electrolito X R CADA 6M
MOTOR Y MONTAJE
Limpiador de aire X R 2Y o 200 horas
Bujia(s) X R 2Y o 200 horas
CONDICIÓN GENERAL
Vibración, ruido, fugas, temperatura* XM
AFINAMIENTO COMPLETO* A SER COMPLETADO POR UN CONCESIONARIO 2Y o 200 horas
* Contacte al concesionario más cercano si necesita ayuda.
** Cambie el aceite y el filtro luego de las primeras ocho (8) horas de operación y luego cada 200 horas desde ahí, o 2 años, lo que ocurra prime-
ro. Cambie más pronto cuando se opera bajo cargas pesadas o en un ambiente polvoriendo o sucio o en altas temperaturas ambientales.
Mantenimiento

73
Detección de fallas
5.1 GUÍA DE DETECCIÓN DE PROBLEMAS
Problema Causa Corrección
El motor no enciende. 1. Fusible volado. 1. Corrija la condición de cortocircuito, reemplace
el fusible de 7.5A en el panel de control del gen-
erador.
2. Sueltos, corrodidos o defectuosos 2. Ajuste, limpie o reemplace los
cables de batería si es necesario.
3. Contactor de arranque defectuoso. (8 kW) 3. *
4. Motor de arranque defectuoso. 4. *
5. Batería muerta. 5. Cargue o reemplace la batería.
El motor intenta arrancar, pero 1. Sin combustible 1. Llene combustible/gire la válvula de combus-
tible.
no arranca. 2. Solenoidde de combustible defectuoso (FS). 2. *
3. Abra el cable #14 del 3. *
tablero de control del motor.
4. Bujía(s) obstruida(s). 4. Limpie, calibre o reemplace la(s) bujía(s).
5. Holgura de la válvula fuera de ajuste. 5. Ajuste la holgura de la válvula.
6. Choke no opera. 6. Vea que la placa del choke se mueva con liber-
tad.
El motor arranca con dificultad 1. Limpiador de aire tapado 1. Revise, reemplace el limpiador de aire.
y funciona con brusquedad. o está dañado.
2. Bujía(s) obstruida(s). 2. Limpie, calibre o reemplace la(s) bujía(s).
3. Incorrecta presión de combustible. 3. Confirme que la presión de combustible al regu-
lador sea de 10-12” de columna de agua (0.36-
0.43 psi) para GLP, y 5-7” de columna de agua
(0.18-0.25 psi) para gas natural.
4. Selector de combustible en la posición incorrecta. 4. Mueva el selector a la posición correcta.
5. El choke permanece cerrado. 5. Verifique que la placa del choke se mueva con
libertad.
AUTO/OFF/MANUAL 1. Interruptor defectuoso. 1. *
interruptor puesto en OFF, pero 2. Interruptor AUTO/OFF/MANUAL 2. *
el motor continúa Cableado incorrectamente.
funcionando. 3. Tablero de control defectuoso. 3. *
No hay salida AC 1. El interruptor de circuido de la línea principal 1. Reinicie el interruptor del circuito
del generador. está en la posición OFF (o en OPEN). a ON (o CLOSED).
2. Falla interna del generador. 2. *
No hay transferencia a 1. Bobina de interruptor de transferencia dfectuoso. 1. *
respaldo luego que la red pública 2. Relé de transferencia defectuoso. 2. *
falla de fuente. 3. Cicuito de relé de transferencia abierto. 3. *
4. Tablero lógico de control defectuoso. 4. *
La unidad consume grandes 1. Motor sobrecargado de aceite. 1. Ajuste el aceite al nivel apropiado.
cantidades de aceite. 2. Tipo o viscosidad de aceite inapropiado. 2. Ver “Recomendaciones de aceite de motor”.
3. Junta, sello o manguera dañadas 3. Revise si hay fugas de aceite.
4. Respirador del motor defectuoso. 4. *
*Contacte al concesionario más cercano si necesita ayuda.

74
6.1 NAVEGACIÓN DEL SISTEMA
DE MENÚ
Para ir al MENU, use la tecla “Esc” desde cualquier página. Es posible
que se necesite presionar varias veces antes de llegar a la página del
menú. El menú actualmente seleccionado se muestra como una palabra
que destella. Navegue al menú requerido usando las teclas +/-. Cuando
el menú requerido está destellando, presione la tecla ENTER. Dependiendo
del menú seleccionado, puede haber una lista de opciones presentadas.
Use el mismo método de navegación para seleccionar la pantalla deseada
(consulte el diagrama de Sistema de menú).
6.1.1 CAMBIO DE AJUSTES (MENÚ DE EDICIÓN)
Para cambiar un ajuste como el contraste de la pantalla, vaya al menú
EDIT y use las teclas +/- para navegar al ajuste que se cambiará. Una vez
que el ajuste se muestre, (por ej. contraste), presione la tecla ENTER para
ir al modo de edición. Use las teclas +/- para cambiar el ajuste, presione
la tecla ENTER para almacenar el nuevo ajuste.
NOTA:
Si no se presiona la tecla ENTER para grabar el nuevo ajuste, sólo
se guardará temporalmente. La siguiente vez que la batería se
desconecte, el ajuste revertirá al su valor anterior.
Apéndice

75
Apéndice
MENU PRINCIPAL
REG DE FUNCREG DE ALARMA
HISTORIA ESTATUS
COMANDOESTADO VERSIONESPANTALLA
FREQUENCIA
DEL GENERADOR
HORAS DE
MOTOR
RPM
DE MOTOR
VOLTAJE DE LA
BATERÍA
DEPURAR
ENTRADAS SALIDAS PANTALLA
EDITAR
CONTRASTE
IDIOMA
HORA/FECHA
TIEMPO/VELOC
DE EJERCICIO
ESC Presione la tecla “ESCAPE”
para regresar en los niveles
del menú.
+ / - Use la tecla “+/-” para
navegar por el menú.
ENTER Use la tecla “ENTER”
para seleccionar ítems o
ingresar datos.
ESC
ESC
ESC
ESC
ESC ESC
La contraseña se ingresa en
esta página
REINICIAR
MANTENIMIENTO
PRUEBA QT

76
PARA GENERADORES DE 10 KW Y MENOS
DECLARACIÓN DE GARANTÍA DE CONTROL DE EMISIONES
SUS DERECHOS Y OBLIGACIONES DE GARANTÍA
La Agencia de protección ambiental de los Estados Unidos (EPA) y Generac Power Systems, Inc. (Generac) se complacen en
explicar la garantía del sistema de control de emisiones para su nuevo equipo del año 2008 o posterior. equipo nuevo que use
motores pequeños de chispa deben estar diseñados, construidos y equipados para cumplir estándares anti-smog muy exigentes
para el gobierno federal. Generac garantizará los sistemas de emisión en su motor por el periodo de tiempo listado abajo siempre
que no haya abuso, negligencia, modificación o mantenimiento inapropiado de su equipo.
Su sistema de control de emisión puede incluir partes como: carburador, sistema de ignición, sistema de combustible, convertidor
catalítico, y otros componentes asociados relacionados a la emisión (si los tuviera).
COBERTURA DE LA GARANTÍA DEL FABRICANTE:
Este sistema de control de emisión está garantizado por dos años. Si durante este periodo de garantía se encuentra que
cualquier parte relacionada a las emisiones está defectuosa en materiales o mano de obra, se efectuará las reparaciones o el
intercambio por parte de un concesionario de servicio autorizado de Generac.
RESPONSABILIDADES DE GARANTÍA DEL PROPIETARIO:
Como propietario del generador, usted es responsable de completar todos los mantenimientos requeridos tal como se lista en el
manual del propietario proporcionado por la fábrica. Para propósitos de garantía, Generac recomienda que usted conserve todos
los recibos que cubren el mantenimiento de su generador, pero Generac no puede rehusar la garantía sólo debido a la falta de
recibos.
Como propietario del generador, usted deberá ser consciente de que Generac puede negar cualquier y/o todas las coberturas y
responsabilidades de la garantía si su generador, o una parte o componente del mismo, ha fallado debido al abuso, negligencia,
mantenimiento inapropiado o modificaciones no aprobadas, o el uso de repuestos falsos o del mercado negro no fabricados,
suministrados o aprobados por Generac.
Usted es responsable de contactar a un concesionario autorizado de garantía de Generac tan pronto se presente el
problema. Las reparaciones de garantía deberán completarse en un tiempo razonable, sin exceder los 30 días.
El servicio de garantía puede arreglarse contactando ya sea a su concesionario de venta o a un concesionario de servicio de
garantía autorizado de Generac. Para ubicar al concesionario de servicio de garantía autorizado de Generac más cercano a usted,
llame a nuestro número gratuito.
1-800-333-1322
NOTA IMPORTANTE: Esta declaración de garantía explica sus derechos y obligaciones bajo la Garantía del sistema de control
de emisiones (ECS Warranty), que Generac le proporciona Generac siguiendo las leyes federales. También vea “Garantías
limitadas de Generac para los sistemas de potencia de Generac, Inc.” que se adjunta a este manual en una hoja separada,
también proporcionada a usted por Generac. Tenga en cuenta que esta garantía no se aplicará a ningún daño incidental,
consecuencial o indirecto causado por defectos en los materiales y mano de obra, o cualquier retraso en reparar o reemplazar
las partes defectuosas. Esta garantía reemplaza a todas las otras garantías, expresas o implícitas. Específicamente, Generac no
ofrece otras garantías como de mercantibilidad o adecuación a un uso particular. Algunos estados no permiten limitaciones en
cuánto dura una garantía implícita, de modo que la limitación expresada arriba puede no aplicarse a usted.
La garantía ECS se aplica sólo al sistema de control de emisiones de su nuevo equipo. Si hay algún conflicto en términos
entre la garantía ECS y la garantía de Generac, se aplicará la de Generac. Ambas garantías describen derechos y obligaciones
importantes respecto a su nuevo motor.
El servicio de garantía puede ser realizado sólo por un servicio de garantía autorizado de Generac. Cuando se requiera servicio
de garantía, se debe presentar evidencia que muestre la fecha de venta al comprador/propietario original.
Si usted tuviera alguna pregunta respecto a sus derechos y responsabilidades de garantía, deberá ponerse en contacto con
Generac en la siguiente dirección:
ATENCIÓN DEPARTAMENTO DE GARANTÍAS
GENERAC POWER SYSTEMS, INC.
P.O. BOX 297 • WHITEWATER, WI 53190
Parte 1
Garantía

77
GARANTÍA DEL SISTEMA DE CONTROL DE EMISIONES
Garantía de sistema de control de emisiones (garantía ECS) para equipo que usa motores pequeños de chispa.
(a) Aplicabilidad: Esta garantía se aplica a equipo que utiliza motores pequeños para fuera de pista. El periodo de garantía
ECS empezará en la fecha en que el equipo nuevo es comprado por o entregado a su propietario/comprador final original y
continuará por los siguientes 24 meses consecutivos.
(b) Cobertura general de la garantía de emisiones: Generac garantiza al propietario/comprador final original del motor o
equipamiento nuevo y a cada subsiguiente comprador/propietario que el ECS cuando se instaló estuvo:
(1) Diseñado, construido y equipado para cumplir con todas las regulaciones aplicables: y
(2) Libre de defectos en materiales y mano de obra que cause la falla de una parte garantizada en cualquier momento
durante el periodo de garantía ECS.
(c) La garantía sobre partes relacionadas a la emisión se interpretarán como sigue:
(1) Cualquier parte garantizada que no esté programada para reemplazo como mantenimiento requerido en el Manual del
propietario será garantizada en el periodo de garantía ECS. Si fallara cualquier parte durante el periodo de garantía
ECS, deberá ser reparado o reeemplazado por Generac de acuerdo a la Subsección (4) más abajo. Cualquier parte así
reparada o reemplazada bajo la garantía ECS deberá ser garantizada por el resto del periodo de garantía ECS.
(2) Cualquier parte garantizada que esté programada sólo para inspección regular como se especifica en el Manual del
propietario será garantizada en el periodo de garantía ECS. Una declaración en el manual del propietario a efecto de
“reparar o reemplazar según sea necesario” no reducirá el periodo de garantía ECS. Cualquier parte así reparada o
reemplazada bajo la garantía ECS deberá ser garantizada por el resto del periodo de garantía ECS.
(3) Cualquier parte garantizada que esté programada para reemplazo según lo requiera el mantenimiento en el Manual del
Propietario deberá ser garantizado por el periodo de tiempo antes del primer punto de reemplazo programado para esa
parte. Si la parte falla antes del primer reemplazo programado, la parte será reparada o reemplazada por Generac de
acuerdo a la Subsección (4) más abajo. Cualquier parte relacionada a las emisiones así reparada o reemplazada bajo la
garantía ECS será garantizada por el resto del periodo antes del primer punto de reemplazo programado para aquella
parte.
(4) La reparación o reemplazo de cualquier parte garantizada relacionada a las emisiones bajo esta garantía ECS deberá
realizarse sin costo alguno para el propietario en un centro de servicio de garantía autorizado por Generac.
(5) No obstante las disposiciones de la subsección (4) arriba indicadas, los servicios o reparaciones por garantía deben ser
proporcionados en una instalación de servicio autorizada por Generac.
(6) Cuando el motor sea inspeccionado por un centro de servicio de garantía autorizado de Generac, el propietario/
comprador no será responsable de los costos de diagnóstico si la reparación se considera dentro de la garantía.
(7) A lo largo del periodo de garantía ECS, Generac mantendrá un suministro de partes garantizadas relacionadas a las
emisiones suficiente para cumplir la demanda esperada para tales repuestos.
(8) Cualquier repuesto relacionado a la emisión autorizado y aprobado por Generac puede usarse en la ejecución de
cualquier reparación o mantenimiento de garantía ECS y se proporcionará sin costo al comprador/propietario. Dicho uso
no reducirá las obligaciones de garantía ECS de Generac.
(9) . Los repuestos no aprobados, añadidos, modificados, falsos y/o del mercado negro no se pueden usar para modificar
o reparar un motor Generac. Dicho uso invalida esta garantía ECS y será base suficiente para no aceptar un reclamo
por garantía ECS. Generac no podrá ser declarado responsable por fallas de cualquier parte garantizada de un equipo
Generac causadas por el uso de tales repuestos no aprobados, añadidos, modificados, falsos y/o del mercado negro.
LAS PARTES RELACIONADAS A LA EMISIÓN PUEDEN INCLUIR LO SIGUIENTE (SI SE
TIENE):
1) SISTEMA DE MEDICIÓN DE COMBUSTIBLE
A. CARBURADOR Y PARTES INTERNAS
B. REGULADOR DE PRESIÓN
2) SISTEMA DE INDUCCIÓN DE AIRE
A. DISTRIBUIDOR DE ENTRADA
B. FILTRO DE AIRE
3) SISTEMA DE IGNICIÓN
A. BUJÍAS
B. BOBINAS/MÓDULO DE IGNICIÓN
4) SISTEMA DE INYECCIÓN DE AIRE
A. VÁLVULA DE AIRE DE PULSO
5) SISTEMA DE ESCAPE
A. CATALIZADOR
B. REACTOR TÉRMICO
C. DISTRIBUIDOR DE ESCAPE
Parte 2
Part No. 0H1911 Rev. A 01/09
Garantía

78
PARA GENERADORES DE 13 KW Y MÁS
Declaración de garantía de la Agencia de Protección Ambiental de los Estados Unidos
Derechos de garantía, obligaciones y cobertura
La Agencia de protección ambiental de los Estados Unidos (EPA) y Generac Power Systems, Inc. (Generac) se complacen en
explicar la garantía del sistema de control de emisiones para su nuevo motor estacionario de emergencia. Si durante el periodo
de garantía se encuentra defectuoso algún sistema de control de emisión o componente en materiales o manufactura, Generac
reparará su motor sin costo para usted por el diagnóstico, reemplazo de repuestos, y mano de obra siempre que se haga en
una instalación de servicio de garantía autorizada por Generac. Su sistema de control de emisión puede incluir partes como la
medición de combustible, sistemas de arranque y escape y otros componentes relativos a la emisión que están listados abajo.
Generac garantizará los sistemas de emisión en su motor del año 2009 y posterior siempre que no hayan sufrido abuso, negli-
gencia, modificación o mantenimiento inapropiado de su motor. Para motores menores a 130 HP. el periodo de garantía es de dos
años desde la fecha de venta al comprador final. Para motores mayores o iguales a 130 HP el periodo de garantía es tres años de
la fecha en que el motor fue puesto en servicio.
Responsabilidades de la garantía del comprador/propietario
Como comprador/propietario del motor usted es responsable de lo siguiente. 1.) El motor debe ser instalado y configurado de
acuerdo con las especificaciones de instalación de Generac. 2.) Completar todos los requerimientos de mantenimiento listados
en su manual de propietario. 3.) Cualquier configuración del motor debe hacerse de acuerdo y en consistencia con las instruccio-
nes del manual del propietario. 4.) Cualquier sistema de control de emisión o componente debe mantenerse y operarse apropia-
damente con el fin de asegurar la operación apropiada del motor y el sistema de control para minimizar las emisiones en todo
momento.
Generac puede negar cualquiera o todas las coberturas de la garantía del sistema de control de emisión o responsabilidad del
motor o un sistema de control de emisión o componente de su motor, si ha fallado debido a abuso, negligencia, modificación no
aprobada o mantenimiento inapropiado o el uso de partes falsas o del mercado negro no fabricadas, suministradas o aprobadas
por Generac. El mantenimiento programado o el servicio de garantía pueden arreglarse contactando al representante de ventas
o un servicio de garantía autorizado de Generac, al 888-GENERAC (888-436-3722) o a www.generac.com para conocer el repre-
sentante más cercano a usted. El comprador/propietario será responsable de cualquier gasto y otros cobros que se incurra por
llamadas de servicio y/o transporte del producto desde/hasta las instalaciones de inspección o reparación. El comprador/propie-
tario será responsable por cualquier daño o pérdida incurridos mientras el motor está siendo tranportado para inspección o re-
paraciones de garantía. Contacte a Generac Power Systems Inc. para mayor información relacionada con la garantía de sistemas
de control de emisión, Generac Power Systems, Inc. P.O. Box 8, Waukesha, WI 53187, Teléfono 888-GENERAC (888-436-3722) o
www.generac.com
Las partes relacionadas con la emisión incluyen lo siguiente (si está equipado)
1) Sistema de medición de combustible 3) Sistema de arranque incluído.
1.1) Unidad de carburador de gasolina y componentes internos a) Bujía, b) Módulo de arranque,
a) Filtro de combust, b) Carburador, c) Bomba de combustible c) Bobina de arranque, d) Cables de bujía
1.2) Unidad de carburación y sus componentes 4) Sistema de escape
a) Controlador de combustible, b) Carburador y sus juntas, a) Unidad de catalizador, b) Distribuidor de escape,
c) Mezclador y sus juntas, d) Regulador primario de gas c) Silenciador, d) Tubería de escape, e) Junta de silen-
e) Vaporizador de líquido ciador
1.3) Regulador de combustible 5) Unidad de respirador de cárter que incluye:
2) Sistema de inducción de aire, que incluye: a) Tubo de conexión de respiradero, b) Válvula de PCV
a) Tubería/distribuidor de entrada, b) Limpiador de aire 6) Sensor de oxígeno
7) Sistema de control - emisión de diagnóstico
Parte 1
Parte No. 0H1916 Rev A
Garantía

79
Requerimientos de cumplimiento de la Agencia de Protección Ambiental de los Estados
Unidos
Responsabilidades de archivamiento del comprador/propietario
La agencia de protección ambiental de los Estados Unidos (EPA) y Generac Power Systems, Inc. (Generac), se complacen en ex-
plicarle sus requerimientos en archivamiento para el cumplimiento de los estándares de rendimiento - Subparte JJJ para motores
de combustión interna estacionarios de ignición por bujía tal como se lista en el Código electrónico de las regulaciones federales
titulo 40 parte 60. Como propietario/comprador del motor y quien opera y mantiene su motor estacionario de emergencia certifi-
cado y sistema de control de emisiones de acuerdo a las guías relativas a las emisiones aplicable tal como se especifica en este
manual de propietario, se requiere que usted cumpla las siguientes notificaciones y requerimientos de archivamiento para demos-
trar el cumplimiento. 1.) Conservar la documentación de que el motor está certificado para cumplir con los estándares de emisión.
2.) Archivamiento de material conducido. 3.) Archivamiento de la disposición de permite que los motores de gas natural operen
usando propano para un máximo de 100 horas por año como combustible alternativo sólo durante las operaciones de emergencia
siempre que el motor no esté certificado para operar con propano. 4.) Cumplir todas las notificaciones de cumplimiento enviadas
al propietario/comprador y conservar toda la documentación probatoria. 5.) Archivar las horas de operación, incluyendo lo que
clasificó la operación como emergencia y cuántas horas se gastó en operaciones no de emergencia. Para motores de emergencia
mayores o iguales a 130 HP, el archivamiento de horas de operación empieza el 1º de Enerdo de 2011. Para motores de emergen-
cia menores a 130 HP, el archivamiento de horas de operación empieza el 1º de Enero de 2009; los motores están equipados con
medidores de horas no reseteables para facilitar el archivamiento.
Administraciones específicas de calidad de aire o distritos de control de polución de aire pueden tener requerimientos de reporte
o de archivamiento adicionales y diferentes. Su permiso para construir y/u operar el motor puede estar sujeto al cumplimiento de
tales requerimientos. Consulte con su administración local de calidad de aire o distrito de control de polución de aire los requeri-
mientos específicos.
Los motores de combustión interna estacionarios de emergencia (ICE) pueden ser operados para revisiones de mantenimiento y
pruebas de presteza, siempre que las pruebas sean recomendadas por el gobierno local, estatal o federal, Generac o la compañía
de seguros asociada con el motor. Las revisiones de mantenimiento y pruebas de presteza de tales unidades se limita a 100 horas
por año. No hay límite de tiemppo en el uso de los ICE estacionarios de emergencia en situaciones de emergencia. El comprador/
propietario puede solicitar al administrador la aprobación de horas adicionales a usarse para las revisiones de mantenimiento y
pruebas de presteza, pero no se requiere solicitud si el propietario conserva registros que indiquen que los estándares locales,
estatales o federales requieren el mantenimiento y pruebas de los ICE de emergencia más allá de las 100 horas por año. Los ICE
estacionarios de emergencia pueden operar hasta 50 horas por año en situaciones de no emergencia, pero esas 50 horas se
cuentan hacia las 100 horas por año proporcionadas para mantenimiento y pruebas. Las 50 horas por año para situaciones de no
emergencia no se pueden usar para suprimir picos ni generar ingresos para que una instalación suministre energía a una grilla
eléctrica o de otro modo suministre energía como parte de un arreglo financiero con otra entidad. Para el comprador/propietario
de motores de emergencia, cualquier operación diferente a aquella de emergencia, mantenimiento y pruebas, y operación en
situaciones de no emergencia por 50 horas por año, como se permite en esta sección, está prohibida.
Si usted opera y mantiene su motor de combustión interna SI estacionario de emergencia certificado y sistemas de control de
emisiones de acuerdo con las especificaciones y guías en este manual del propietario, la EPA no requerirá pruebas de rendi-
miento del motor. Si no es así, su motor será considerado no certificado y usted debe demostrar el cumplimiento de acuerdo a la
subparte JJJ - estándares de rendimiento para motores de combustión interna de arranque por bujía estacionarios tal como se
lista en el Código eléctrico de regulaciones federales, título 40, parte 50.
Instrucciones de instalación relativas a las emisiones
Su motor estacionario de emergencia certificado tiene sistemas de control de emisiones prefijados o componentes que no re-
quieren ajustes. La inspección y reemplazo de un componente relacionado con la emisión es necesario hacerlo de acuerdo a los
requerimientos citados en la declaración de gatantía de la agencia de protección ambiental de los Estados Unidos o se pueden
arreglar contactando a su concesionario o al servicio autorizado de garantía de Generac al 888-GENERAC (888-436-3722) o
puede buscar en www.generac.com al concesionario más cercano a usted. El no seguir estas instrucciones al instalar un motor
certificado en un motor no vial viola la ley federal 40 CFR 1068.105 (b), sujeta a multas o penalidades como se describe en el acta
de aire limpio.
Parte 2
Parte No. 0H1916 Rev A
Garantía

Parte No. 0H8358 Revisión F (10/05/11) Impreso en los EE.UU.

L
I
S
T
E
D
CU
S
Générateurs de secours
automatiques refroidis à l'air de
8, 10, 14, 17 et 20 kW
Manuel d'entretien
81

Introduction ............................................... 83
Lire attentivement ce manuel ...............................................83
Règles de sécurité .................................... 83
Contenu ..............................................................................83
Fonctionnement et maintenance ...........................................83
Comment obtenir l'entretien .................................................83
Index des normes ................................................................85
Informations générales ............................. 86
1.1 Déballage/ inspection ...................................................86
1.2 Systèmes de protection ................................................86
1.3 Exigence du NEC en matière de disjoncteur d'interruption
de circuit de défaut d'arc pour les pièces habitables .....86
1.4 Informations relatives aux émissions ...........................87
1.5 Le générateur ...............................................................88
1.6 Caractéristiques techniques .........................................89
1.7 Prêt à fonctionner .........................................................90
1.8 Exigences et recommandations en termes
de carburant .................................................................90
1.9 Consommation de carburant .........................................90
1.10 Reconfiguration du système de carburant .....................91
1.11 Emplacement ...............................................................92
1.12 Exigences de la batterie ................................................93
1.13 Installation de la batterie ...............................................93
1.14 La batterie ....................................................................95
1.15 Chargeur de batterie .....................................................95
Démarrage et ajustements après
l'installation ................................................ 96
2.1 Activer le générateur .....................................................96
2.2 Avant le démarrage initial ..............................................96
2.3 Vérification du fonctionnement du commutateur
de transfert ..................................................................96
2.4 Vérifications électriques ................................................96
2.5 Tests du générateur sous charge ..................................98
2.6 Vérification du fonctionnement automatique ..................98
Fonctionnement ......................................... 99
3.1 Interface du panneau de commande .............................99
3.2 Fonctionnement automatique du transfert ...................100
3.3 Séquence de fonctionnement automatique ..................100
3.4 Fonctionnement manuel du transfert ...........................101
3.5 Compartiment latéral ..................................................102
3.6 Systèmes de protection ..............................................102
Maintenance ............................................ 104
4.1 Fusible .......................................................................104
4.2 Vérification du niveau d'huile du moteur ......................104
4.3 Changement de l'huile du moteur ................................105
4.4 Changement du filtre à air du moteur ..........................105
4.5 Bougie(s) d'allumage ..................................................106
4.6 Entretien de la batterie ................................................107
4.7 Réglage du jeu des soupapes
GH-410/GT-530/990/999 .............................................107
4.8 Système de refroidissement .......................................108
4.9 Précaution après immersion .......................................108
4.10 Protection contre la corrosion .....................................108
4.11 Procédure de mise hors service ..................................108
4.12 Calendrier d'entretien ..................................................110
Dépannage............................................... 111
5.1 Guide de dépannage ...................................................111
Annexe ..................................................... 112
6.1 Navigation dans le menu du système ..........................112
Garantie .................................................. 114
Table des matières
82

INTRODUCTION
Nous vous remercions d'avoir acheté ce générateur entraîné par moteur
compact, à haute performance, refroidi à l'air. Il est conçu pour fournir
l'alimentation électrique afin de faire fonctionner les charges critiques
pendant une coupure de courant.
Cette unité est installée en usine dans une enveloppe en métal imperméa-
ble qui est exclusivement conçue pour une installation à l'extérieur. Ce
générateur fonctionnera à l'aide de propane liquide (PL) ou de gaz naturel
(GN) retiré vapeur.
REMARQUE :
Ce générateur est approprié pour l'alimentation des charges rési-
dentiels habituelles telles que les moteurs à induction (pompes de
vidange, réfrigérateurs, climatiseurs, fours, etc.), les composants élec-
triques (ordinateur, écran, télévision, TV, etc.), les charges d'éclairage
et les micro-ondes.
LIRE ATTENTIVEMENT CE MANUEL
En cas d'incompréhension d'une partie de ce manuel, contacter le dépo-
sitaire le plus proche pour connaître les procédures de démarrage, de
fonctionnement et d'entretien.
RÈGLES DE SÉCURITÉ
Dans tout ce manuel, et sur les étiquettes et sur les autocollants apposés
sur le générateur, les blocs DANGER, AVERTISSEMENT, ATTENTION et
REMARQUE servent à alerter le personnel d'instructions spéciales au sujet
d'une opération spécifique qui peut s'avérer dangereuse si elle n'est pas
effectuée correctement ou avec précaution. Les respecter attentivement.
Leurs définitions sont les suivantes :
INDIQUE UNE SITUATION OU UNE ACTION DANGEREUSE QUI, SI
ELLE N'EST PAS ÉVITÉE, ENTRAÎNERA LA MORT OU DES BLESSURES
GRAVES.
AVERTISSEMENT!
Indique une situation ou une action dangereuse qui, si elle n'est pas
évitée, pourrait entraîner la mort ou des blessures graves.
ATTENTION!
Indique une situation ou une action dangereuse qui, si elle n'est pas
évitée, entraînera des blessures légères ou modérées.
REMARQUE :
Les remarques contiennent des informations supplémentaires
importantes relatives à une procédure et se trouvent dans le corps de
texte régulier de ce manuel.
Ces avertissements de sécurité ne peuvent pas éliminer les dangers qu'ils
signalent. Le sens commun et le respect strict des instructions spéciales
lors de l'action ou l'entretien sont essentiels pour éviter les accidents.
Quatre symboles de sécurité couramment utilisés accompagnent les
blocs DANGER, AVERTISSEMENT et ATTENTION. Chacun indique le type
d'informations suivant :
n Ce symbole indique des informations importantes relatives à
la sécurité qui, si elles ne sont pas suivies, pourraient mettre
en danger la sécurité personnelle et/ou les biens des autres.
Ce symbole indique un risque potentiel d'explosion.
Ce symbole indique un risque potentiel d'incendie.
Ce symbole indique un risque potentiel d'électrocution.
L'opérateur est responsable de l'utilisation correcte et sûre de l'équipe-
ment. Le fabricant recommande fortement que l'opérateur lise ce Manuel
d'entretien et comprenne parfaitement toutes les instructions avant
d'utiliser cet équipement. Le fabricant recommande aussi fortement d'ap-
prendre à d'autres utilisateurs comment correctement démarrer et faire
fonctionner l'unité. Cela les prépare au cas où ils auraient besoin de faire
fonctionner l'équipement pour une urgence.
CONTENU
Ce manuel contient des informations pertinentes du propriétaire pour ces
modèles :
Moteur GH-410 à un cylindre, 7 kW de GN, 8 kW de PL•
Moteur GT-530 à deux cylindres, 9 kW de GN, 10 kW de PL•
Moteur GT-990 à deux cylindres, 13 kW de GN, 14 kW de PL•
Moteur GT-990 à deux cylindres, 16 kW de GN, 17 kW de PL•
Moteur GT-999 à deux cylindres, 18 kW de GN, 20 kW de PL•
FONCTIONNEMENT ET MAINTENANCE
L'opérateur a la responsabilité d'effectuer tous les contrôles de sécurité,
afin de s'assurer que toute la maintenance pour le fonctionnement sûr est
effectuée rapidement et que l'équipement est contrôlé régulièrement par un
dépositaire. Le service de maintenance normal et le remplacement des pièces
sont la responsabilité du propriétaire/ de l'opérateur et, en tant que tels, ne
sont pas considérés comme des défauts matériels ou de fabrication selon les
conditions de la garantie. Les habitudes et usages de fonctionnement indivi-
duels contribuent à la nécessité du service de maintenance.
La bonne maintenance et le bon entretien du générateur assurent un nombre
minimal de problèmes et des dépenses d'exploitation minimales. Consulter
un dépositaire pour obtenir des aides et des accessoires d'entretien.
COMMENT OBTENIR L'ENTRETIEN
Si un entretien ou des réparations sont nécessaires sur l'équipement, contac-
ter un dépositaire pour obtenir de l'aide. Les techniciens d'entretien sont
formés en usine et sont capables de gérer tous les besoins en entretien.
Lorsque vous contactez un dépositaire au sujet des pièces et de l'entretien, il
faut toujours fournir les numéros de modèle et de série complets de l'unité qui
sont indiqués sur son étiquette d'identification, qui est située sur le générateur.
Voir la section « Le générateur » pour connaître l'emplacement de l'étiquette.
N° de modèle ______________ N° de série ______________
Exemple d'étiquette
Règles de sécurité
83

84
Lire attentivement ces RÈGLES DE SÉCURITÉ avant l'installation, le
fonctionnement ou l'entretien de cet équipement. Se familiariser avec
ce Manuel d'entretien et l'unité. Le générateur peut fonctionner en toute
sécurité, de façon efficace et de façon fiable uniquement s'il est correc-
tement installé, utilisé et entretenu. De nombreux accidents sont dus au
non-respect de règles ou précautions simples et essentielles.
Le fabricant ne peut pas anticiper toutes les situations possibles qui
peuvent impliquer un danger. Les avertissements de ce manuel et figurant
sur les étiquettes et les autocollants apposés sur l'unité ne sont, toutefois,
pas exhaustifs. Si vous suivez une procédure, une méthode de travail ou
une technique de fonctionnement que le fabricant ne recommande pas en
particulier, assurez-vous qu'elle est sans danger pour les autres. S'assurer
que la procédure, la méthode de travail ou la technique de fonctionnement
choisie ne rende pas le générateur dangereux.
n Malgré la conception sûre de ce générateur,
faire fonctionner ce générateur de façon
imprudente, négliger sa maintenance ou ne pas
prendre de précaution peut entraîner des
blessures corporelles ou la mort. Autoriser
uniquement les personnes responsables et
compétentes pour installer, faire fonctionner et
effectuer la maintenance de cet équipement.
Ces machines génèrent des tensions potentiellement
mortelles. S'assurer que toutes les étapes sont
suivies pour rendre la machine sûre avant de
commencer à travailler sur le générateur.
n Les pièces du générateur tournent et/ou se
réchauffent pendant le fonctionnement. Soyez
prudent si vous êtes à proximité des générateurs
en fonctionnement.
n L'installation doit toujours respecter les codes,
normes, lois et réglementations applicables.
n Un générateur en marche émet du monoxyde de
carbone et du gaz toxique inodore et invisible.
Respirer du monoxyde de carbone peut causer
des céphalées, de la fatigue, des vertiges, des
vomissements, une confusion, une attaque, des
nausées, des évanouissements ou la mort.
DANGERS GÉNÉRAUX
Pour des raisons de sécurité, le fabricant recommande que cet équipement • soit installé, entretenu et réparé par un dépositaire d'entretien ou autre élec-
tricien ou technicien d'installation compétent et qualifié qui connaît tous les
codes, normes et réglementations applicables. L'opérateur doit respecter
tous ces codes, normes et réglementations applicables.
Les fumées d'échappement du moteur contiennent du monoxyde de • carbone, qui peut s'avérer MORTEL. Ce gaz dangereux, s'il est respiré
en concentrations suffisantes, peut entraîner une perte de conscience
ou même la mort. Ne pas modifier ou ajouter le système d'échappe-
ment ou effectuer toute opération qui rendrait le système dangereux ou
non conforme aux codes et normes applicables.
Installer un détecteur d'oxyde de carbone à alimentation par batterie • à l'intérieur, conformément aux instructions et aux recommandations
du fabricant.
Un débit approprié, non obstrué d'air de refroidissement et de ventila-• tion est important pour corriger le fonctionnement du générateur. Ne
pas modifier l'installation ou ne pas laisser même un blocage partiel
de l'alimentation de ventilation, étant donné que cela peut sérieusement
affecter le fonctionnement sûr du générateur. Le générateur DOIT être
installé et fonctionner à l'extérieur uniquement.
Tenir les mains, les pieds, les vêtements, etc., à distance des courroies • de transmission, des ventilateurs et d'autres pièces mobiles ou chau-
des. Ne jamais retirer toute courroie de transmission ou tout protège-
ventilateur pendant que l'unité fonctionne.
Lors du travail sur cet équipement, conserver l'alerte à tout moment. Ne • jamais travailler sur l'équipement en cas de fatigue physique ou mentale.
Inspecter régulièrement le générateur et contacter le dépositaire le • plus proche pour les pièces qui nécessitent une réparation ou un
remplacement.
Avant d'effectuer toute maintenance sur le générateur, débrancher • ses câbles de batterie afin d'empêcher un démarrage accidentel.
Débrancher le câble de la borne de la batterie signalée par l'inscription
NEGATIVE (Négatif), NEG ou (–) en premier, puis retirer le câble de la
borne POSITIVE (Positif), POS ou (+). Lors du rebranchement des
câbles, branchez le câble POSITIVE (Positif) en premier et le câble
NEGATIVE (Négatif) en dernier.
Ne jamais utiliser le générateur ou n'importe laquelle de ses pièces • comme marche. Monter sur l'unité peut écraser et casser les pièces,
et peut entraîner des conditions de fonctionnement dangereuses suite
à une fuite de gaz d'échappement, une fuite de carburant, une fuite
d'huile, etc.
DANGERS D'ÉCHAPPEMENT
L'échappement du moteur du générateur contient du gaz de monoxyde • de carbone toxique invisible et inodore MORTEL. Respirer du monoxyde
de carbone peut causer : des vertiges, des palpitations, des nausées,
des contractions musculaires, des céphalées, des vomissements, une
faiblesse et une somnolence, une confusion, des évanouissements,
une perte de conscience ou même la mort. Si vous ressentez l'un des
symptômes liés à l'empoisonnement au monoxyde de carbone, respi-
rez de l'air frais et consultez immédiatement un médecin.
Ne jamais faire fonctionner le générateur à proximité d'un véhicule à • l'intérieur d'un garage ou de tout autre espace clos.
DANGERS ÉLECTRIQUES
Tous les générateurs traités par ce manuel produisent des tensions • électriques dangereuses et peuvent entraîner une électrocution mor-
telle. Le réseau électrique délivre des tensions extrêmement élevées
et dangereuses au commutateur de transfert comme le générateur de
secours pendant son fonctionnement. Éviter le contact avec les fils
nus, les bornes, les branchements, etc., pendant le fonctionnement de
l'unité. S'assurer que tous les couvercles, les dispositifs de protection
et les barrières sont en place, sécurisés et/ou verrouillés avant de faire
fonctionner le générateur. Si un travail doit être effectué autour d'une
unité en fonctionnement, rester sur une surface isolée et sèche pour
réduire le risque de danger électrique.
Ne jamais manipuler tout type de dispositif électrique qui est dans • l'eau, alors que vous êtes pieds nus ou que vos mains ou vos pieds
sont mouillés. CELA ENTRAÎNERA UN RISQUE D'ÉLECTROCUTION.
n CONSERVER CES CONSIGNES – Le fabricant recommande que ces règles relatives au fonctionnement sûr soient copiées et affichées
à proximité du site d'installation de l'unité. Tous les opérateurs et opérateurs potentiels de cet équipement doivent prendre conscience
de la question de la sécurité.
Règles de sécurité

85
Le National Electric Code (NEC) (Code électrique national) exige que le • bâti et que les pièces externes électriquement conductrices du générateur
soient correctement reliés à une terre approuvée. Les codes électriques
locaux peuvent également exiger la bonne mise à la terre du système
électrique du générateur.
Après avoir installé ce système électrique de secours à usage domes-• tique, le générateur peut tourner et démarrer à tout moment sans
avertissement. Lorsque cela se produit, les circuits de charge sont
transférés vers la source d'alimentation de SECOURS (générateur).
Afin d'éviter des blessures éventuelles si de tels démarrage et trans-
fert se produisent, toujours régler l'interrupteur AUTO/OFF/MANUAL
(Auto/arrêt/manuel) sur la position OFF (Arrêt) avant de travailler sur
l'équipement et retirer le fusible de 15 A du panneau de commande
du générateur.
En cas d'accident causé par électrocution, couper immédiatement la • source d'alimentation électrique. Si cela est impossible, essayer de
libérer la victime du conducteur sous tension. ÉVITER TOUT CONTACT
DIRECT AVEC LA VICTIME. Utiliser un objet non conducteur, comme une
corde ou une planche sèche, pour libérer la victime du conducteur sous
tension. Si la victime est inconsciente, assurer les premiers secours et
demander une aide médicale immédiate.
Ne jamais porter de bijoux lors du travail sur cet équipement. Les bijoux • peuvent être conducteurs et entraîner une électrocution ou peuvent se
prendre dans les composants mobiles, entraînant des blessures.
RISQUES D'INCENDIE
Pour la sécurité contre les incendies, le générateur doit être correcte-• ment installé et entretenu. L'installation doit toujours respecter les
codes, normes, lois et réglementations applicables. Strictement
respecter les codes de construction et électriques locaux, d'État et
nationaux. Conformément aux réglementations, l'Occupational Safety
and Health Administration (OSHA) (Gestion de la sécurité et la santé au
travail) a été établi. S'assurer également que le générateur est installé
conformément aux instructions et aux recommandations du fabricant.
Après une bonne installation, ne rien faire qui pourrait altérer une ins-
tallation sûre et rendre l'unité non conforme aux codes, normes, lois et
réglementations susmentionnés.
Garder un extincteur à proximité du générateur à tout moment. Les • extincteurs portant la mention « ABC » par la National Fire Protection
Association (Association nationale pour la protection contre les
incendies) sont adaptés à une utilisation sur le système électrique
de secours. Garder l'extincteur correctement chargé et se familiariser
avec son utilisation. Consulter les pompiers locaux en cas de ques-
tions relatives aux extincteurs.
RISQUES D'EXPLOSION
Ne pas fumer à proximité du générateur. Nettoyer immédiatement toute • éclaboussure de carburant ou d'huile. S'assurer qu'aucune matière
combustible ne reste dans, sur ou à proximité du générateur, étant
donné que cela peut entraîner un INCENDIE ou une EXPLOSION. Garder
l'espace environnant du générateur propre et sans débris.
Les fluides gazeux tels que le gaz naturel et le propane liquide (PL) • sont extrêmement EXPLOSIFS. Installer le système d'alimentation en
carburant conformément aux codes en matière de carburant et de gaz.
Avant de mettre en service le système électrique de secours à usage
domestique, il faut purger les tuyaux du système de carburant et tester
les fuites conformément au code applicable. Après l'installation, ins-
pecter le système de carburant régulièrement afin de s'assurer qu'il n'y
a pas de fuite. Aucune fuite n'est autorisée.
INDEX DES NORMES
En l'absence de normes, codes, réglementations et lois applicables, les
informations publiées indiquées ci-dessous peuvent servir de directive
pour l'installation de cet équipement.
1. NFPA n° 37, STATIONARY COMBUSTION ENGINES AND GAS
TURBINES (Moteurs à combustion et turbines à gaz stationnai-
res), disponible auprès de la National Fire Protection Association
(Association nationale pour la protection contre les incendies), 470
Atlantic Avenue, Boston, MA 02210.
2. NFPA n° 76A, ESSENTIAL ELECTRICAL SYSTEMS FOR HEALTH
CARE FACILITIES (Systèmes électriques principaux destinés aux éta-
blissements de soins de santé), disponible comme précédemment.
3. NFPA n° 54, NATIONAL FUEL GAS CODE (Code national sur le gaz
combustible), disponible comme précédemment.
4. NFPA n° 58, AMERICAN NATIONAL STANDARD FOR STORAGE AND
HANDLING OF LIQUEFIED PETROLEUM GAS (Norme américaine en
matière de stockage et de manipulation des gaz de pétrole liquéfiés),
disponible comme précédemment.
5. NFPA n° 70, NFPA HANDBOOK OF NATIONAL ELECTRIC CODE
(Manuel NFPA du code électrique national), disponible comme pré-
cédemment.
6. Article X, NATIONAL BUILDING CODE (Code de construction
national), disponible auprès de l'American Insurance Association,
85 John Street, New York, N.Y. 10038.
7. AGRICULTURAL WIRING HANDBOOK (Manuel de câblage agricole),
disponible auprès du Food and Energy Council, 909 University
Avenue, Columbia, MO 65201.
8. ASAE EP-3634, INSTALLATION AND MAINTENANCE OF FARM
STANDBY ELECTRICAL SYSTEMS (Installation et maintenance des
systèmes électriques de secours pour les fermes), disponible auprès
de l'American Society of Agricultural Engineers, 2950 Niles Road, St.
Joseph, MI 49085.
9. NFPA n° 30, FLAMMABLE AND COMBUSTIBLE LIQUIDS CODE
(Code relatif aux liquides inflammables et combustibles), disponible
comme précédemment.
AVERTISSEMENT PROPOSITION 65 CALIFORNIE
L'échappement du moteur et certains de ses constituants sont
susceptibles selon l'État de Californie d'entraîner des cancers,
des malformations congénitales ou pouvant être nocifs pour le
système reproductif.
AVERTISSEMENT PROPOSITION 65 CALIFORNIE
Ce produit contient ou émet des produits chimiques susceptibles
selon l'État de Californie d'entraîner des cancers, des malformations
congénitales ou autres maladies pouvant être nocives pour le
système reproductif.
Règles de sécurité

n Seuls des électriciens ou des prestataires
qualifiés doivent travailler sur ces installations,
qui doivent être strictement conformes aux
codes, normes et réglementations applicables.
1.1 DÉBALLAGE/ INSPECTION
Après le déballage, inspecter attentivement le contenu afin de
s'assurer qu'il n'y a pas de dommage.
Ce générateur de secours est prêt à être installé avec une • plaque de pose fournie et pré-montée en usine et est équipé
d'une enveloppe imperméable destinée à une installation à
l'extérieur uniquement.
Ce générateur de secours certifié UL peut être accompagné • d'un commutateur de transfert automatique avec centre de
distribution intégré. L'association du commutateur de transfert
et du centre de distribution est précâblée avec un conduit de
câbles de deux pieds et de 30 pieds. Des disjoncteurs pour
les branchements du circuit de secours sont inclus (le cas
échéant).
Cet interrupteur bipolaire certifié UL est conçu pour 100 • ou
200 ampères CA à 250 volts maximum. Le commutateur de
transfert de 100 A est destiné à une utilisation à l'intérieur
uniquement. Le commutateur de transfert de 200 A est desti-
né à une utilisation à l'intérieur/ l'extérieur (le cas échéant).
AVERTISSEMENT!
Si ce générateur est utilisé pour alimenter des
circuits de charge électriques, normalement
alimentés par une source d'alimentation publique,
le code exige d'installer un commutateur de
transfert. Le commutateur de transfert doit
isoler de manière efficace le système électrique
du système de distribution publique lorsque le
générateur fonctionne (NEC 700, 701 et 702). Le
fait de ne pas isoler un système électrique par
ces moyens endommagera le générateur et peut
également causer des blessures ou la mort pour
les électriciens due(s) à la réalimentation de
l'énergie électrique.
En cas de perte ou de dommage observé(e) lors de la livraison,
faire noter à la (aux) personne(s) effectuant la livraison tout dom-
mage sur la facture de transport ou les faire signer le document de
perte ou de dommage du consignateur.
Si une perte ou un dommage est observé(e) après la livraison,
mettre les matériaux endommagés à part et contacter le transpor-
teur pour entamer des procédures de réclamation.
L'expression « avarie non apparente » est comprise comme dési-
gnant un dommage au contenu d'un colis qui n'est pas visible lors
de la livraison mais est découvert plus tard.
Afin d'ouvrir correctement le toit, appuyer sur la lèvre supérieure
centrale et relâcher le loquet. Si la pression n'est pas appliquée du
dessus, le toit peut sembler bloqué. Toujours vérifier si le loquet
latéral est déverrouillé avant d'essayer de soulever le toit.
1.2 SYSTÈMES DE PROTECTION
Contrairement à un moteur automobile, le générateur peut fonc-
tionner pendant de longues périodes sans opérateur présent pour
surveiller les conditions du moteur. Pour cette raison, le moteur
est équipé des systèmes suivants afin de le protéger contre des
conditions potentiellement nuisibles :
1. Détecteur de basse pression d'huile 6. Batterie faible
2. Détecteur de haute température 7. Sous-fréquence
3. Démarrage excessif 8. Sous-tension
4. Survitesse 9. Surtension
5. Capteur de régime du moteur 10. Défaillance interne
Sur le panneau de commande, des indications informent le per-
sonnel que l'une de ces défaillances s'est produite. Il y a également
un message d'état sur l'écran qui s'affiche lorsque toutes les condi-
tions décrites dans la section « Prêt à fonctionner » sont vraies.
1.3 EXIGENCE DU NEC EN
MATIÈRE DE DISJONCTEUR
D'INTERRUPTION DE CIRCUIT
DE DÉFAUT D'ARC POUR LES
PIÈCES HABITABLES
En 2001, le National Electric Code (NEC) (Code électrique national)
a introduit une exigence relative à la nouvelle construction. Cette
nouvelle exigence indique la nécessité que les interrupteurs de
circuit de défaut d'arc soient utilisés afin de protéger tout le circuit
de dérivation qui alimente une pièce habitable. L'exigence NEC
actuelle est indiquée ci-dessous.
1.3.1 PROTECTION DE L'INTERRUPTEUR DE CIRCUIT
DE DÉFAUT D'ARC DE LA SECTION 210.12
1. Définition : Un interrupteur de circuit de défaut d'arc est un
dispositif conçu pour fournir une protection contre les effets
des défaillances d'arc en reconnaissant les caractéristiques
uniques de la formation d'arc et en fonctionnant afin de mettre
hors tension le circuit en cas de défaut d'arc.
2. Pièces habitables : Tous les circuits de dérivation qui ali-
mentent les prises de 125 volts, monophasées, de 15 et
20 ampères, installées dans les pièces habitables doivent être
protégés par un interrupteur de circuit de défaut d'arc indiqué
pour fournir une protection à tout le circuit de dérivation.
La section 210.12 exige que la protection d'interruption de circuit
de défaut d'arc (AFCI) soit assurée sur les circuits de dérivation
qui alimentent les prises (prise, éclairage, etc.) dans les pièces
habitables. L'exigence se limite aux circuits de 15 et 20 ampères à
125 volts. Il n'y a aucune interdiction de fournir une protection AFCI
sur les autres circuits ou dans d'autres endroits que les pièces.
Étant donné que les circuits sont souvent partagés entre une pièce
et d'autres endroits tels que les toilettes et les couloirs, le fait de
fournir une protection AFCI sur tout le circuit serait conforme à la
section 210.12.
86
Informations générales

87
Si pendant l'installation du système de secours à usage domes-
tique, il a été décidé de fournir une alimentation de secours à un
circuit de dérivation de pièce, il faut remplacer le disjoncteur du
commutateur de transfert par un interrupteur de circuit de défaut
d'arc.
Le plus important est que les disjoncteurs soient uniquement com-
mutés de manière identique. Par exemple, en cas de remplacement
d'un disjoncteur de 15 A, il DOIT être remplacé par un disjoncteur
AFCI de 15 A. De même, un disjoncteur de 20 A DOIT être rem-
placé par un disjoncteur AFCI de 20 A.
Ces disjoncteurs AFCI sont disponibles au magasin de matériel le
plus proche.
Code d'article Siemens Description
Q115AF AFCI unipolaire 15 A
Q120AF AFCI unipolaire 20 A
1.4 INFORMATIONS RELATIVES
AUX ÉMISSIONS
L'Agence pour la protection de l'environnement (EPA) exige que
ce générateur soit conforme aux normes en matière d'émission
d'échappement. Le générateur est certifié comme respectant tous
les niveaux d'émission d'échappement EPA applicables. Pour plus
d'informations relatives aux exigences établies par l'EPA, lire ce
qui suit :
Le générateur est certifié pour l'utilisation d'un moteur stationnaire
pour la protection d'énergie électrique de secours. Toute autre utili-
sation peut constituer une violation des lois fédérales et/ou locales.
Il est important de suivre les caractéristiques techniques relatives à
la maintenance contenues dans la section « Maintenance » afin de
s'assurer que le moteur soit conforme aux normes applicables en
matière d'émission pour la durée de vie du moteur. Ce moteur est
certifié pour fonctionner au propane liquide et au gaz naturel riche.
Le système de contrôle des émissions du générateur est composé
des éléments suivants :
Système de dosage du carburant•
Carburateur/ mélangeur•
Régulateur de carburant•
Système d'induction d'air•
Pipe/ collecteur d'admission•
Filtre à air•
Système d'allumage•
Bougie d'allumage•
Module d'allumage•
La période de conformité des émissions à laquelle il est fait
référence sur l'étiquette de conformité des émissions indique le
nombre d'heures de fonctionnement pendant lesquelles le moteur
a prouvé respecter les exigences fédérales en matière d'émission.
Voir le tableau ci-dessous pour déterminer la période de confor-
mité de ce générateur. Le déplacement du générateur est indiqué
sur l'étiquette de conformité des émissions.
Déplacement Catégorie Période de conformité
< 66 cc
A 300 heures
B 125 heures
C 50 heures
66 cc -
< 225 cc
A 500 heures
B 250 heures
C 125 heures
225 cc
A 1000 heures
B 500 heures
C 250 heures
Informations générales

88
1.5 LE GÉNÉRATEUR
Étiquette
(voir exemple)
Jauge
d'huile
Enveloppe
d'échappement
Base composite Filtre à huile Compartiment de batterie
Régulateur
de carburant
Admission
de carburant
(arrière)
Filtre à air
Disjoncteur
Panneau
de commande
Étiquette
(voir exemple)
Jauge
d'huile
Enveloppe
d'échappement
Base composite Filtre à huile Compartiment de batterie
Régulateur
de carburant
Admission
de carburant
(arrière)
Filtre à air Disjoncteurs
Panneau
de commande
Schéma 1.3 – Moteur GT-990/ GT-999 à deux cylindres
(porte retirée), 14, 17 et 20 kW
Schéma 1.1 – Moteur GH-410 à un cylindre, 8 kW
(porte retirée)
Étiquette
(voir exemple)
Jauge
d'huile
Enveloppe
d'échappement
Base composite Filtre à huile Compartiment de batterie
Régulateur
de carburant
Admission
de carburant
(arrière)
Filtre
à air
Disjoncteur
Panneau
de commande
Schéma 1.2 – Moteur GT-530 à deux cylindres, 10 kW
(porte retirée)
Exemple d'étiquette
Informations générales

89
1.6 CARACTÉRISTIQUES TECHNIQUES
1.6.1 GÉNÉRATEUR
Modèle 8 kW 10 kW 13 kW 14 kW 16 kW 17 kW 20 kW
Tension nominale 240
Courant de charge nominal
maximal (Amps) à 240 Volts (LP)* 33,3 41,6 54,1 58,3 66,6 70,8 83,3
Disjoncteur principal 35 A 45 A 55 A 60 A 65 A 65 A 100 A
Circuits** 50 A, 240 V - - 1 - 1 1 -
40 A, 240 V - 1 1 1 1 1 -
30 A, 240 V 1 1 - - - - -
20 A, 240 V 1 - 1 1 1 1 -
20 A, 120 V 3 3 4 6 5 5 -
15 A, 120 V 3 5 4 4 5 5 -
Phase 1
Nombre de pôles du rotor 2
Fréquence nominale CA 60 Hz
Exigence de la batterie
Groupe 26R,
12 volts et 350 ADF
minimum
Groupe 26R, 12 volts et 525 ADF minimum
Poids (unité uniquement en livres) 340 387 439 439 439 455/421 450
Enveloppe Acier Acier Acier Acier Acier Acier/ aluminium Aluminium
Plage de fonctionnement normale
Cette unité est testée conformément aux normes UL 2 200 à une température de service comprise entre 20 °F (- 29 °C) et 122 °F (50 °C). Pour les régions où
les températures chutent en dessous de 32 °F (0 °C), il est fortement recommandé de porter un vêtement isotherme. En cas de fonctionnement à une tempéra-
ture supérieure à 77 ºF (25 ºC), la puissance du moteur peut diminuer. (veuillez vous reporter à la section sur les caractéristiques techniques du moteur).
Ces générateurs sont classés en conformité avec UL2200, la « Safety Standard for Stationary Engine Generator Assemblies » (Norme de sécurité pour les assemblages de moteurs de générateur
fixes) et la norme CSA-C22.2 N° 100-04 sur les moteurs et les générateurs.
* Le gaz naturel est classé en fonction de la teneur en Btu du combustible spécifique. Les dépréciations typiques se situent entre 10-20 % de moins sur le débit de gaz du pétrole liquéfié.
** Il faut protéger les circuits à déplacer par un disjoncteur de la même taille. Par exemple, un circuit de 15 A dans le même panneau doit être un circuit de 15 A dans le commutateur de transfert.
1.6.2 MOTEUR
Modèle 8 kW 10 kW 13/ 14/ 16/ 17 kW 20 kW
Type de moteur GH-410 GT-530 GT-990 GT-999
Nombre de cylindres 1 2 2 2
Cheval-vapeur nominal à 3 600 rpm* 14,8 18 32 36
Déplacement 410 cc 530 cc 992 cc 999 cc
Bloc-cylindres Manchon en aluminium avec fonte
Disposition des soupapes Soupapes en tête
Système d'allumage Semi-conducteurs avec magnéto
Bougie d'allumage recommandée RC14YC BPR6HS RC14YC RC12YC
Écartement de bougie d'allumage 0,76 mm (0,030 pouce) 0,76 mm (0,030 pouce) 1,02 mm (0,040 pouce) 0,76 mm (0,030 pouce)
Taux de compression 8,6:1 9,5:1 9,5:1 9,5:1
Démarreur 12 VCC
Capacité d'huile y compris le filtre Env. 1,5 Qts Env. 1,7 Qts Env. 1,9 Qts Env. 1,9 Qts
Filtre à huile recommandé Réf. 070185F
Filtre à air recommandé Réf. 0G3332 Réf. 0E9581 Réf. 0C8127 Réf. 0G5894
Fonctionnement RPM 3 600
* La puissance de l'appareil est soumise à, et limitée par, ces facteurs tels que le contenu en Btu de carburant, la température ambiante et l'altitude. La puissance de l'appareil diminue d'environ 3,5 %
pour chaque tranche de 1 000 pieds au-dessus du niveau de la mer ; et diminuera également d'environ 1 % pour chaque tranche de 6 °C (10 °F) au-dessus de 16 °C (60 °F) de température ambiante.
Informations générales

1.7 PRÊT À FONCTIONNER
Le « Ready to Run » (Prêt à fonctionner) de l'affichage est prête lorsque
toutes les conditions suivantes sont vraies :
1. L'interrupteur AUTO/OFF/MANUAL (Auto/ arrêt/ manuel) est réglé sur
la position AUTO.
2. La tension du réseau public à fournir à l'unité est captée par le dis-
joncteur. Si la tension du réseau public n'est pas branchée à l'unité
ou si elle est inférieure à environ 150-160 volts CA, le système
affichera le message « pas de réseau disponible ». Cela indique que
si l'interrupteur AUTO/OFF/MANUAL (Auto/ arrêt/ manuel) est réglé
sur la position Auto, le générateur démarrera.
3. Aucune alarme n'est présente, par exemple, de pression d'huile
basse, de température élevée, etc.
1.8 EXIGENCES ET
RECOMMANDATIONS EN
TERMES DE CARBURANT
Avec le gaz de PL, utiliser uniquement le système de retrait de vapeur.
Ce type de système utilise les vapeurs qui se forment au-dessus du com-
bustible liquide dans le réservoir de stockage.
Le moteur a été intégré avec un système de carburation de carburant qui
est conforme aux spécifications du California Air Resources Board 1997
(Conseil des ressources de l'air de Californie) en ce qui concerne les
moteurs hybrides inviolables. L'unité fonctionnera au gaz naturel ou au gaz
de PL mais a été réglée en usine comme fonctionnant au gaz naturel. S'il
est nécessaire de changer le combustible principal en gaz de PL, il faut
reconfigurer le système de carburant. Voir la section Reconfiguration du
système de carburant pour connaître les consignes relatives à la reconfi-
guration du système de carburant.
Les combustibles recommandés doivent avoir un contenu en Btu de
1 000 Btus par pied cube minimum pour le gaz naturel ; ou 2 520 Btus
par pied cube minimum pour le gaz de PL. Pour connaître le contenu en
Btu du combustible, demander au fournisseur de carburant.
La pression de carburant requise pour le gaz naturel est une colonne
d'eau de cinq (5) pouces à sept (7) pouces (0,18 à 0,25 livres par
pouce carré) ; et concernant le propane liquide, une colonne d'eau
de 10 pouces à 12 pouces (0,36 à 0,43 livres par pouce carré). Le
régulateur principal de l'alimentation en propane n'est PAS INCLUS
avec le générateur.
REMARQUE :
La dimension de tous les tuyaux, la construction et l'implantation doi-
vent être conformes à la norme NFPA 54 relative aux applications au
gaz naturel et à la norme NFPA 58 relative aux applications à propane
liquide. Une fois que le générateur est installé, vérifier si la pression de
carburant ne chute JAMAIS en dessous d'une colonne d'eau de quatre
(4) pouces pour le gaz naturel ou une colonne d'eau de 10 pouces pour
le propane liquide.
Avant l'installation du générateur, l'installateur doit consulter les fournis-
seurs de carburant locaux ou le commissaire des incendies local afin de
vérifier les codes et les réglementations en matière de bonne installation.
Les codes locaux mandateront le bon acheminement du tuyau de conduite
de combustible gazeux autour des jardins, des arbustes et d'autres végé-
tations afin d'éviter tout dommage.
Il faut faire particulièrement attention lors de l'installation de l'unité lorsque
les conditions locales incluent des inondations, des tornades, des oura-
gans, des tremblements de terre et un sol instable pour la flexibilité et la
résistance de la tuyauterie et de ses raccordements.
Utiliser un colmatant de tuyau ou une pâte à joint sur tous les raccords filetés.
Il faut purger toute la tuyauterie de combustible gazeux et tester les fuites
avant le démarrage initial conformément aux codes, normes et réglemen-
tations locaux.
1.9
CONSOMMATION DE CARBURANT
Unité
Gaz nat. Vapeur de PL
1/2 charge Charge
pleine
1/2 charge Charge
pleine
7/ 8 kW 77 140 0,94/34 1,68/62
9/ 10 kW 102 156 1,25/46 1,93/70
13/ 14 kW 156 220 1,56/58 2,30/84
16/ 17 kW 183 261 1,61/59 2,57/94
18/ 20 kW 206 294 1,89/69 2,90/106
* Le gaz naturel est en pieds cube par heure.
** Le PL est en gallons par heure/ pieds cube par heure.
*** Les valeurs indiquées sont approximatives.
Vérifier si le compteur à gaz est capable de fournir assez de débit de
combustible pour inclure les appareils électroménagers.
1.9.1 EXIGENCES DE DÉBIT EN BTU - GAZ NATUREL
Débit en BTU nécessaire pour chaque unité en se basant sur 1 000 BTU
par pied cube.
7 kW — 140 000 BTU/heure•
9 kW — 156 000 BTU/heure•
13 kW — 220 000 BTU/heure•
16 kW — 261 000 BTU/heure•
18 kW — 294 000 BTU/heure•
Les combustibles gazeux tels que le gaz natu-
rel et le propane liquide (PL) sont extrêmement
explosifs. La plus petite étincelle peut enflam-
mer ces combustibles et causer une explosion.
Aucune fuite de combustible n'est autorisée. Le
gaz naturel, qui est plus léger que l'air, a tendance
à s'accumuler en hauteur. Le gaz de PL est plus
lourd que l'air et a tendance à se déposer au
niveau du sol.
REMARQUE :
Il faut installer au minimum une soupape d'arrêt manuelle approu-
vée dans le tuyau de conduite de combustible gazeux. La vanne doit
facilement être accessible. Les codes locaux déterminent le bon
emplacement.
90
Informations générales

91
1.10 RECONFIGURATION DU
SYSTÈME DE CARBURANT
1.10.1 MOTEUR 410 CC, 8 KW
Afin de reconfigurer le système de carburant du GN au PL, suivre ces
étapes (Schéma 1.4) :
REMARQUE :
Le régulateur principal de l'alimentation en propane n'est PAS INCLUS
avec le générateur. Une pression de carburant d'une colonne d'eau de
10 à 12 pouces (0,36 à 0,43 livres par pouce carré) vers l'admission
de carburant du générateur DOIT ÊTRE FOURNIE.
1. Mettre hors tension la principale alimentation en gaz (si branchée).
2. Ouvrir le toit et retirer la porte.
3. Retirer la batterie (si installée).
4. Prendre le sélecteur de carburant par la poignée en T en plastique
dans l'enveloppe en polyéthylène fournie avec le générateur.
5. Localiser le bouton du sélecteur sur le couvercle de boîte à vent,
derrière la porte jaune du filtre à air et la surpuissance active. L'unité
vient de l'usine en position GN (gaz naturel). En saisissant la poi-
gnée, insérer l'extrémité de la goupille dans le trou dans la languette
du sélecteur et tirer vers l'extérieur pour surmonter la pression du
ressort, puis, tourner dans le sens des aiguilles d'une montre de
90 degrés et laisser le sélecteur revenir une fois aligné sur la position
de PL (Propane liquide).
6. Conserver cet outil avec le manuel d'entretien.
7. Installer la batterie, la porte et fermer le toit.
8. Inverser la procédure pour reconvertir en gaz naturel.
Schéma 1.4 – Sélecteur de carburant
REMARQUE :
Utiliser un colmatant de tuyau ou une pâte à joint approuvé(e) sur tous
les raccords filetés afin de réduire la possibilité de fuite.
1.10.2
MOTEURS À DEUX CYLINDRES, 10, 14, 17 ET 20 KW
Afin de reconfigurer le système de carburant du GN au PL, suivre ces étapes :
REMARQUE :
Le régulateur principal de l'alimentation en propane n'est PAS INCLUS
avec le générateur. Une pression de carburant d'une colonne d'eau de
10 à 12 pouces (0,36 à 0,43 livres par pouce carré) vers l'admission
de carburant du générateur DOIT ÊTRE FOURNIE.
1. Ouvrir le toit.
2. Pour les unités de 10 kW : Desserrer le collier et glisser à nouveau
dans le tuyau d'admission d'air.
Glisser le sélecteur de carburant sur le carburateur vers l'arrière de • l'enveloppe (Schémas 1.5 et 1.6).
Retourner le tuyau d'admission et serrer le collier fermement.•
Pour les unités de 14, 17 et 20 kW : retirer le couvercle du filtre à
air.
Faire glisser le levier du sélecteur vers l'arrière de l'enveloppe • (Schémas 1.7 et 1.8).
Remettre le couvercle du filtre à air et serrer les deux vis à serrage • à main.
Schéma 1.5 - GT-530, 10 kW (remise du tuyau d'admission)
Levier de sélection
de carburant -
Position « In »
(Intérieur) pour le
combustible au
gaz naturel
Schéma 1.6 - GT-530, 10 kW (remise du tuyau d'admission)
Levier de sélection de
carburant - Position
« Out » (Extérieur)
pour le combustible
(vapeur) liquide au
propane
Informations générales

92
3. Fermer le toit.
4. Inverser la procédure pour reconvertir en gaz naturel.
Schéma 1.7 - GT-990/ GT-999, 14, 17 et 20 kW (couver-
cle de boîte à vent retiré)
Levier de sélection de carburant - Position « In » (Intérieur)
pour le combustible au gaz naturel
Schéma 1.8 - GT-990/ GT-999, 14, 17 et 20 kw (couver-
cle de boîte à vent retiré)
Levier de sélection de carburant - Position « Out » (Extérieur)
pour le combustible (vapeur) liquide au propane
1.11 EMPLACEMENT
n Les fumées d'échappement du moteur
contiennent du monoxyde de carbone, qui peut
s'avérer MORTEL. Ce gaz dangereux, s'il est
respiré en concentrations suffisantes, peut
entraîner une perte de conscience ou même la
mort. Il faut installer correctement ce générateur
en se conformant strictement aux codes et
normes applicables. Après l'installation, ne rien
faire qui pourrait rendre le système dangereux ou
non conforme à ces codes et/ou normes.
Faire fonctionner le générateur à l'extérieur
UNIQUEMENT.
• Empêcher les gaz d'échappement d'entrer dans
un espace confiné par les fenêtres, les portes,
l'aération, les vides sanitaires ou d'autres ouvertures
(Schéma 1.9).
• Il est fortement recommandé d'installer un (des)
détecteur(s) de monoxyde de carbone à l'intérieur
conformément aux instructions / recommandations
du fabricant.
• Il faut monter le générateur en toute sécurité
conformément aux codes applicables et aux
caractéristiques techniques du fabricant. Ne PAS
modifier ou ajouter le système d'échappement ou
effectuer toute opération qui rendrait le système
dangereux ou non conforme aux codes et normes
applicables.
1.11.1 GÉNÉRATEUR
Installer le générateur, dans son enveloppe protectrice, à l'extérieur,
dans un endroit où il y a toujours suffisamment d'air pour refroidir et aérer
le générateur (Schéma 1.9). Prendre en considération ces facteurs :
L'installation du générateur • doit être strictement conforme aux nor-
mes NFPA 37, NFPA 54, NFPA 58 et NFPA 70.
Installer l'unité à un endroit où les orifices d'entrée et de sortie ne • seront pas obstrués par les feuilles, l'herbe, la neige, etc. Si des vents
dominants provoquent un coup de vent ou une dérive, envisager l'uti-
lisation d'un pare-vent pour protéger l'unité.
Installer le générateur en hauteur où les niveaux d'eau ne monteront • pas et ne le mettront pas en danger.
Laisser suffisamment de place sur tous les côtés du générateur pour • la maintenance et l'entretien. Il faut installer cette unité conformément
aux normes NFPA 37 et NFPA 70 actuelles applicables ainsi qu'à tout
autre code fédéral, d'État et local pour les distances minimales avec
les autres structures. NE PAS installer sous des plateformes ou des
structures en bois sauf s'il y a un espace d'au moins quatre (4) pieds
au-dessus du générateur, de trois (3) pieds sur les côtés et l'avant et
de 18 pouces à l'arrière de l'unité.
Installer l'unité là où les gouttières, l'effondrement du toit, l'irrigation • des terres, les arroseuses ou le refoulement de la pompe de vidange
n'inondent pas l'unité ou n'éclaboussent pas l'enveloppe, y compris
tout orifice d'entrée ou de sortie d'air.
Installer l'unité dans un endroit où les services ne seront pas affectés • ou obstrués, y compris les services cachés, souterrains ou couverts
tels que l'électricité, le carburant, le téléphone, la climatisation ou
l'irrigation.
Lorsque des vents dominants forts soufflent dans une direction, orien-• ter les orifices d'entrée d'air du générateur dans le sens opposé aux
vents dominants.
Installer le générateur aussi près que possible de l'alimentation en • combustible afin de réduire la longueur de la tuyauterie.
Installer le générateur aussi près que possible du commutateur de • transfert. NE PAS OUBLIER QUE LES LOIS OU LES CODES PEUVENT
RÉGLEMENTER LA DISTANCE ET L'EMPLACEMENT.
Le générateur doit être installé sur une surface à niveau. Le bâti de • base doit être à niveau à plus ou moins deux (2) pouces autour.
Informations générales

93
Le générateur est habituellement placé sur des gravillons ou des • cailloux. Vérifier les codes locaux pour savoir si une dalle en béton est
nécessaire. Si une dalle de béton est nécessaire, il faut se conformer
à tous les codes fédéraux, d'État et locaux. Il faut faire particulièrement
attention à ce que la dalle en béton dépasse la longueur et la largeur
du générateur de six (6) pouces (0,152 mètres) au minimum sur tous
les côtés.
Schéma 1.9 – Espaces autour du générateur
1.11.2 CONSIGNES D'INSTALLATION POUR LES
GÉNÉRATEURS STATIONNAIRES REFROIDIS À
L'AIR DE 8, 10, 14, 17 ET 20 KW.
La National Fire Protection Association (Association nationale pour la
protection contre les incendies) a une norme relative à l'installation et à
l'utilisation des moteurs à combustion stationnaires. Cette norme est la
NFPA 37 et ses exigences limitent l'espacement entre un générateur clos
et une structure ou un mur (Schéma 1.10).
NFPA 37, Section 4.1.4, moteurs situés à l'extérieur. Les moteurs, et leurs
logements étanches le cas échéant, qui sont installés à l'extérieur, doivent
être situés à 5 pieds au minimum des ouvertures dans les murs et à
5 pieds au minimum des structures ayant des murs combustibles. Il faut
une séparation minimale lorsque les conditions suivantes existent :
1. Le mur adjacent de la structure a une résistance nominale au feu
d'au moins 1 heure.
2. L'enveloppe étanche est composée de matières non combustibles et
il a été démontré qu'un feu à l'intérieur de l'enveloppe n'enflammera
pas les matières à l'extérieur de l'enveloppe.
Annexe A — Documentation explicative
A4.1.4 (2) Les moyens de démontrer la conformité se font au moyen
d'un essai au feu grandeur nature ou de procédures de calcul.
En raison des espaces limités qui sont souvent disponibles pour l'ins-
tallation, il est devenu clair que l'exception (2) serait avantageuse pour
de nombreuses installations résidentielles et commerciales. En gardant
cela à l'esprit, le fabricant a passé un contrat avec un laboratoire d'essai
indépendant pour effectuer des essais au feu grandeur nature afin de
s'assurer que l'enveloppe n'enflamme pas les matières combustibles à
l'extérieur de l'enveloppe.
Les critères étaient de déterminer le pire scénario de feu à l'intérieur du
générateur et de déterminer la sensibilité à l'allumage des éléments à l'ex-
térieur de l'enveloppe du moteur à différentes distances. L'enveloppe est
composée de matières non combustibles, et les résultats et conclusions
du laboratoire d'essai indépendant ont indiqué que tout feu à l'intérieur
de l'enveloppe du générateur ne présenterait pas de risque d'allumage
aux combustibles ou structures à proximité, avec ou sans réponse du
personnel du service incendie.
En se basant sur cet essai et sur les exigences de la norme NFPA 37,
Sec 4.1.4, les consignes d'installation du générateur indiquées ci-dessus
sont modifiées jusqu'à 18 pouces (457 mm) entre l'arrière du générateur
et un mur ou bâtiment stationnaire. Pour un espace de maintenance et
de débit d'air adéquat, il faut que l'espace au-dessus du générateur soit
de 4 pieds au moins avec 3 pieds au minimum au niveau de l'avant et de
l'arrière de l'enveloppe. Cela inclurait les arbres, les arbustes et la végéta-
tion qui pourraient obstruer le débit d'air. Voir le diagramme au verso de
la page et le schéma d'installation dans le manuel d'entretien pour plus
d'informations.
Le gaz d'échappement du générateur contient du gaz de monoxyde de
carbone MORTEL. Ce gaz dangereux peut causer la perte de conscience
ou la mort. Ne pas placer l'unité à proximité des fenêtres, des portes, des
prises d'air frais (fours, etc.) ou de toute ouverture dans le bâtiment ou la
structure, y compris les fenêtres et les portes d'un garage annexe.
AVERTISSEMENT!
Si L'INTERRUPTEUR AUTO/OFF/MANUAL (Auto/
arrêt/ manuel) n'est pas réglé sur sa position OFF
(Arrêt), le générateur peut démarrer dès que les
câbles de batterie sont branchés. Si l'alimentation
électrique publique n'est pas mise hors tension,
une décharge disruptive peut se produire au
niveau des bornes de batterie et causer une
explosion.
1.12 EXIGENCES DE LA BATTERIE
Voir la section Caractéristiques techniques pour connaître les bonnes taille
et valeur nominale de batterie.
1.13
INSTALLATION DE LA BATTERIE
Remplir la batterie avec le fluide électrolyte si nécessaire et s'assurer que
la batterie est complètement chargée avant de l'installer.
Avant d'installer et de bancher la batterie, effectuer les étapes suivantes :
1. Régler l'interrupteur AUTO/OFF/MANUAL (Auto/ arrêt/ manuel) sur la
position OFF (Arrêt).
2. Mettre hors tension l'alimentation électrique publique vers le commu-
tateur de transfert.
3. Retirer le fusible de 7,5 A à partir du panneau de commande du
générateur.
Les câbles de batterie ont été branchés en usine au niveau du générateur
(Schéma 1.10). Brancher les câbles aux bornes de batterie de la manière
suivante :
4. Brancher le câble de batterie rouge (à partir du contacteur du démar-
reur) à la borne de batterie indiquée par un signe positif, POS ou
(+).
5. Brancher le câble de batterie noir (à partir de la masse de châssis) à
la borne de batterie indiquée par un signe négatif, NEG ou (—).
6. Installer les couvercles des bornes de batterie (inclus).
REMARQUE :
Il faut utiliser de la graisse diélectrique sur les bornes de batterie afin
de les protéger contre la corrosion.
Informations générales

94
Schéma 1.10 – Consignes d'installation
18 pouces
Distance minimale
36 pouces
36 pouces 36 pouces
60 pouces 60 pouces
Mur existant
Aucune fenêtre ou ouverture dans le mur autorisée à 5 pieds de
tout point de la génératrice.
Haut de la génératrice
60 po. Minimum
60 po. Minimum
recommandé entre les
extrémités
18 pouces
minimum
Génératrice
Espace entre les fenêtres,
les portes, toute ouverture
dans le mur, les arbustes
ou la végétation supérieur
à 12 po. de hauteur
L'espace entre les extrémités et l'avant
de la génératrice doit être de 36 pouces.
Cela inclurait les arbustes, les arbres et
toute sorte de végétation. L'espace en
haut doit être de 60 pouces minimum à
partir de toute structure, débord ou
projection du mur. La génératrice doit
être placée sous une plateforme ou
autre structure qui est fermée et
limiterait ou contiendrait le débit d'air.
Ces consignes se basent sur l'essai au
feu de l'enveloppe de la génératrice et
les exigences du fabricant en matière
de débit d'air pour le bon fonc-
tionnement. Il est possible que les
codes locaux soient différents et plus
restrictifs que ceux décrits ici.
Ce schéma remplace les consignes d'installation contenues dans les manuels d'installation et du propriétaire des
unités refroidies à l'air de Carrier datés d'avant le 26 mai 2007.
Informations générales

95
Schéma 1.10 – Branchements des câbles de batterie
FIL NOIR
(DU BÂTI)
FIL ROUGE (DU
CONTACTEUR DU
DÉMARREUR)
ROUGE
BATTERIE
NOIR
REMARQUE :
L'inversion des branchements de batterie entraînera des dommages.
REMARQUE :
Dans les zones où les températures chutent régulièrement en dessous
de 32 °F (0 °C), il est recommandé d'installer un réchauffeur de batterie
de type disque afin d'aider le démarrage par temps froid.
1.14 LA BATTERIE
Ne pas jeter la batterie au feu. La batterie pourrait
exploser.
Une batterie présente un risque d'électrocution et
un courant de court-circuit élevé. Il faut prendre
les précautions suivantes lors du travail sur les
batteries :
• Retirer le fusible de 7,5 A à partir du panneau de
commande du générateur.
• Retirer les montres, bagues et autres objets en métal.
• Utiliser des outils avec des poignées isolées.
• Porter des gants et des chaussures en caoutchouc.
• Ne pas poser d'outils ou de pièces métalliques sur la
batterie.
• Débrancher la source de chargement avant de
brancher ou de débrancher les bornes de batterie.
AVERTISSEMENT!
n Ne pas ouvrir ou mutiler la batterie. L'électrolyte
libéré s'est avéré être nocif pour la peau et les
yeux, et également toxique.
n L'électrolyte est un acide sulfurique dilué
qui est nocif pour la peau et les yeux. Il est
électriquement conducteur et corrosif.
Il faut respecter les procédures suivantes :
• Porter des lunettes et des vêtements de protection.
• Lorsque l'électrolyte entre en contact avec la peau,
laver immédiatement avec de l'eau.
• Lorsque l'électrolyte entre en contact avec les yeux,
rincer complètement et immédiatement avec de l'eau
et consulter un médecin.
• L'électrolyte renversé doit être lavé avec un agent
neutralisant acide. Une pratique courante consiste
à utiliser une solution de 1 livre (500 grammes) de
bicarbonate de soude dans 1 gallon (4 litres) d'eau.
Il faut ajouter du bicarbonate de soude jusqu'à ce
que la preuve de la réaction (moussage) ait cessé.
Il faut rincer le liquide résultant avec de l'eau et
sécher la zone.
Les batteries au plomb présentent un risque
d'incendie étant donné qu'elles produisent du gaz
hydrogène. Il faut suivre les procédures suivantes :
• NE PAS FUMER à proximité de la batterie.
• NE PAS provoquer de flammes ou d'étincelles dans la
batterie.
• Décharger l'électricité statique du corps avant de
toucher la batterie en touchant d'abord une surface
métallique mise à la terre.
n S'assurer que l'interrupteur AUTO/OFF/MANUAL
(Auto/ arrêt/ manuel) est réglé sur la position OFF
(Arrêt) avant de brancher les câbles de batterie.
Si l'interrupteur est réglé sur la position AUTO ou
MANUAL (Manuel), le générateur peut démarrer
dès que les câbles de batterie sont branchés.
S'assurer que l'alimentation électrique publique
soit hors tension et que le fusible de 7,5 A soit
retiré du panneau de commande du générateur ou
qu'une décharge disruptive ne se produise pas au
niveau des bornes de batterie où les câbles sont
fixés et cause une explosion.
Il faut effectuer, ou faire effectuer par un personnel qualifié, l'entretien de la
batterie en prenant les précautions nécessaires. Le personnel non autorisé
doit se tenir à distance des batteries.
Voir la section Caractéristiques techniques pour connaître les bonnes taille
et valeur nominale lors du remplacement de la batterie. Faire effectuer ces
procédures aux intervalles indiqués dans la section « Calendrier d'entre-
tien ». Un système de mise à la terre négatif est utilisé. Les branchements
de la batterie sont indiqués sur les diagrammes de câblage. S'assurer
que la batterie est correctement branchée et que les bornes sont serrées.
Respecter la polarité de la batterie lors du branchement de la batterie au
générateur.
1.15 CHARGEUR DE BATTERIE
REMARQUE :
Le chargeur de la batterie est intégré dans le module de commande
pour tous les modèles.
Il fonctionne comme un « chargeur intelligent » qui assure que la pro-
duction est permanemment optimisée pour promouvoir une durée de vie
maximale de la batterie et que les niveaux de charge sont à des conditions
de sécurité.
REMARQUE :
L'écran LCD affiche un avertissement lorsque la batterie a besoin
d'entretien.
Informations générales

96
2.1 ACTIVER LE GÉNÉRATEUR
Lorsque la puissance de la batterie est appliquée au générateur au cours
du processus d'installation, le contrôleur s'allume. Toutefois, le générateur
doit encore être activé avant de démarrer automatiquement en cas de
panne de courant.
L'activation du générateur est un simple processus en un geste guidé
par les invites de l'écran du contrôleur. Une fois que le produit est activé,
l'écran du contrôleur ne vous invite pas à nouveau, même si vous débran-
chez la batterie du générateur.
Après avoir obtenu votre code d'activation, veuillez suivre les étapes
suivantes sur le panneau de contrôle du générateur, dans le tableau
d'activation.
2.2
AVANT LE DÉMARRAGE INITIAL
REMARQUE :
Ces unités ont été exécutées et testées à l'usine avant d'être expédiées
et ne nécessitent aucun type d'interruption.
REMARQUE :
Cette unité vient remplie d'huile de l'usine. Vérifier le niveau d'huile et
ajouter la quantité appropriée si nécessaire.
Avant de démarrer, effectuer l'étape suivante :
1. Régler le disjoncteur principal du générateur sur sa position OFF
(Arrêt) (ou OPEN (Ouverte)).
2. Régler l'interrupteur AUTO/OFF/MANUAL (Auto/ arrêt/ manuel) du
générateur sur la position OFF (Arrêt).
3. Mettre HORS TENSION tous les disjoncteurs sur le centre de distri-
bution de la boîte de transfert (T1 et T2).
4. Mettre HORS TENSION toutes les charges branchées aux bornes du
commutateur de transfert T1 et T2.
5. Vérifier le niveau d'huile du carter du moteur et, si nécessaire, remplir
jusqu'à la marque FULL (Plein) de la jauge d'huile avec l'huile recom-
mandée. Ne pas remplir au-dessus de la marque FULL (Plein).
6. Vérifier l'alimentation en carburant. Il faut correctement purger les
conduites de combustible gazeux et tester les fuites conformément
aux codes applicables en matière de carburant et de gaz. Toutes les
soupapes d'arrêt dans les conduites de combustible doivent être
ouvertes.
Pendant le démarrage initial uniquement, le générateur peut dépasser le
nombre normal de tentatives et connaître un « démarrage excessif » (voir la
section « Démarrage excessif »). Cela est dû à l'air accumulé dans le sys-
tème de carburant pendant l'installation. Réinitialiser le tableau de contrôle
et redémarrer jusqu'à deux fois supplémentaires, si nécessaire. Si l'unité ne
démarre pas, contacter le dépositaire local pour obtenir de l'aide.
ATTENTION
!
n Ne jamais faire fonctionner le moteur avec le
niveau d'huile en dessous de la marque « Add »
(Ajouter) sur la jauge d'huile. Cette action
endommagerait le moteur.
2.3 VÉRIFICATION DU
FONCTIONNEMENT DU
COMMUTATEUR DE
TRANSFERT
Se reporter à la section « Fonctionnement manuel du transfert » du
manuel d'entretien pour connaître les procédures.
Ne pas essayer un fonctionnement manuel du
commutateur de transfert tant que toutes les
tensions d'alimentation fournies au commutateur
de transfert n'ont pas été mises hors tension
positivement. Le fait de ne pas mettre hors
tension toutes les tensions d'alimentation
entraînera une électrocution extrêmement
dangereuse et potentiellement fatale.
2.4 VÉRIFICATIONS ÉLECTRIQUES
Effectuer les vérifications électriques suivantes :
1. Régler le disjoncteur principal du générateur sur sa position OFF
(Arrêt) (ou OPEN (Ouverte)).
2. Régler l'interrupteur AUTO/OFF/MANUAL (Auto/ arrêt/ manuel) du
générateur sur la position OFF (Arrêt).
3. Mettre HORS TENSION tous les disjoncteurs sur le centre de distri-
bution de la boîte de transfert (T1 et T2).
4. Mettre sous tension l'alimentation électrique publique vers le
commutateur de transfert à l'aide des moyens fournis (tels que le
disjoncteur principal du réseau public).
Le commutateur de transfert est désormais
électriquement « chaud ». Tout contact avec les
parties « chaudes » entraînera des électrocutions
extrêmement dangereuses et potentiellement
mortelles. Faire attention.
5. Utiliser un voltmètre CA précis afin de vérifier la tension de la source
d'alimentation publique aux bornes du commutateur de transfert N1 et
N2. La tension nominale phase à phase doit être de 240 volts CA.
6. Vérifier la tension de la source d'alimentation publique à la borne
N1 et la cosse neutre du commutateur de transfert ; puis à la borne
N2 et la borne neutre. La tension de phase nominale doit être de
120 volts CA.
7. Lorsque l'on est sûr que la tension de la source d'alimentation élec-
trique publique est compatible avec les valeurs nominales du com-
mutateur de transfert et du circuit de charge, mettre HORS TENSION
l'alimentation électrique publique vers le commutateur de transfert.
8. Sur le panneau du générateur, régler l'interrupteur (Auto/ arrêt/
manuel) sur la position MANUAL (Manuel). Le moteur doit démar-
rer.
9. Laisser le moteur chauffer pendant environ cinq minutes afin de lais-
ser les températures internes se stabiliser. Puis, régler le disjoncteur
principal du générateur sur sa position ON (Marche) (ou CLOSED
(Fermée)).
Démarrage et ajustements après l'installation

97
TABLEAU D'ACTIVATION
SÉLECTIONNER LANGUE DÉPANNAGE
L'écran indique : Utilisez TOUCHES de direction pour défi-
ler jusqu'à la langue désirée. Appuyez sur
ENTRÉE pour sélectionner.
Si la mauvaise langue est choisie, elle peut
être changée plus tard dans le menu «
Édition ».
L'écran indique : Appuyez sur ENTRÉE pour commencer le
processus d'activation.
Si vous appuyez sur ÉCHAP ou lieu d'ENTRÉE,
votre générateur ne fonctionnera qu''en mode
manuel (à des fins de test) et NON ACTIVÉ
s'affiche. Vous aurez besoin de retirer le fusible
du panneau de contrôle du générateur et débran-
chez le connecteur T1, N1 et N2 dans la boîte de
connexion externe (le cas échéant); ou décon-
necter d’entrée de ligne (disjoncteur principal) au
commutateur de transfert pour les 3-5 secondes
et reconnectez, puis commencer par l’étape 1.
L'écran indique : Si vous ne disposez de code d'activation,
allez sur www.activate.com ou appelez le
1-888-9ACTIVATE (922-8482).
Si vous avez déjà votre code d'activation,
attendez 3 à 5 secondes pour l'affichage
suivant.
ENTRER CODE D'ACTIVATION CODE (code d'accès) DÉPANNAGE
L'écran indique : Utilisez les TOUCHES de direction pour
trouver le premier chiffre de votre code d'ac-
tivation.
Appuyez sur ENTRÉE pour sélectionner.
Répétez cette étape jusqu'à ce que tous les
chiffres soient entrés.
Utilisez la touche ECHAP pour corriger les
chiffres précédents.
L'écran indique : L'activation est terminée lorsque tous les
chiffres sont inscrits en dessus et que votre
écran affiche ceci.
Suivez les invites du contrôleur pour pour-
suivre avec le réglage de la fonction de
temps. Pour toute question, consultez votre
manuel d'utilisation.
Qu'advient-il si « Wrong Passcode Try
Again » (code d'accès erroné, essayez à
nouveau) s'affiche ?
Ressaisir votre code d'activation. Si une
seconde tentative échoue, vérifiez le numéro
de code fourni sur activategen.com. S'il
est correct et que le générateur le rejette,
contactez 1-888-9ACTIVATE (922-8482).
« SÉLECTIONNER L’HEURE (0-23) »
« - + »6
Échap Entrée
Série 123456789
Code d’accès XXXXX +/-
Échap Entrée
Pour Activer, allez sur
www.activategen.com
Échap Entrée
Activer (en appuyant sur
Entrée) ou appuyer sur Échap
pour utiliser le mode manuel
Échap Entrée
Langue
- Anglais +
Échap Entrée
Démarrage et ajustements après l'installation

98
Faire attention ! La tension d'alimentation
du générateur est désormais fournie vers le
commutateur de transfert. Tout contact avec
les parties actives du commutateur de transfert
entraînera des électrocutions dangereuses et
potentiellement mortelles.
10. Brancher un voltmètre CA précis et un fréquencemètre aux cosses
E1 et E2 du commutateur de transfert. Une tension doit être de 238-
242 volts à une fréquence de 59,5-60,5 Hertz.
11. Brancher les fils d'essai du voltmètre CA aux cosses E1 et neutre ;
puis aux cosses E2 et neutre. Dans les deux cas, la tension doit être
de 119 à 121 volts CA.
12. Régler le disjoncteur principal du générateur sur sa position OFF
(Arrêt) (ou OPEN (Ouverte)). Laisser le moteur fonctionner à circuit
ouvert quelques minutes afin que les températures internes du
moteur du générateur se stabilisent.
13. Régler l'interrupteur AUTO/OFF/MANUAL (Auto/ arrêt/ manuel) du
générateur sur la position OFF (Arrêt). Le moteur doit s'arrêter.
REMARQUE :
Il est important de ne pas continuer tant que l'on n'est pas sûr que la
tension et la fréquence CA du générateur sont correctes et dans les
limites établies.
2.5 TESTS DU GÉNÉRATEUR
SOUS CHARGE
Afin de tester les charges électriques appliquées au générateur, effectuer
les étapes suivantes :
1. Régler le disjoncteur principal du générateur sur sa position OFF
(Arrêt) (ou OPEN (Ouverte)).
2. Mettre HORS TENSION tous les disjoncteurs sur le centre de distri-
bution de la boîte de transfert (T1 et T2).
3. Régler l'interrupteur AUTO/OFF/MANUAL (Auto/ arrêt/ manuel) du
générateur sur la position OFF (Arrêt).
4. Mettre HORS TENSION l'alimentation électrique publique vers le
commutateur de transfert à l'aide des moyens fournis (tels que le
disjoncteur principal du réseau public).
AVERTISSEMENT!
Ne pas essayer un fonctionnement manuel du
commutateur de transfert tant que toutes les
tensions d'alimentation fournies au commutateur
de transfert n'ont pas été mises hors tension
positivement. Le fait de ne pas mettre hors
tension toutes les tensions d'alimentation
entraînera une électrocution extrêmement
dangereuse et potentiellement fatale.
5. Régler manuellement le commutateur de transfert sur la position
STANDBY (Secours), c-à-d. les bornes de sortie branchées aux bor-
nes E1/E2 du générateur. Le levier de commande du commutateur
de transfert doit être abaissé.
6. Régler l'interrupteur AUTO/OFF/MANUAL (Auto/ arrêt/ manuel) sur
la position MANUAL (Manuel). Le moteur doit démarrer immédiate-
ment.
7. Laisser le moteur se stabiliser et chauffer pendant quelques minu-
tes.
8. Régler le disjoncteur principal du générateur sur sa position ON
(Marche) (ou CLOSED (Fermée)). Les charges sont désormais ali-
mentées par le générateur de secours.
9. Mettre SOUS TENSION le centre de distribution du commutateur de
transfert (T1 et T2).
10. Brancher un voltmètre CA précis et un fréquencemètre aux cosses
E1 et E2.
La tension doit être supérieure à 240 volts et la fréquence doit être • supérieure à 60 Hz.
11. Laisser le générateur fonctionner à une charge nominale pleine pen-
dant 20-30 minutes. Détecter tout bruit anormal, vibration ou autres
indications de fonctionnement anormal. Vérifier s'il y a des fuites
d'huile, preuve de surchauffe, etc.
12. Lorsque le test sous charge est effectué, mettre HORS TENSION les
charges électriques.
13. Régler le disjoncteur principal du générateur sur sa position OFF
(Arrêt) (ou OPEN (Ouverte)).
14. Laisser le moteur fonctionner à circuit ouvert quelques minutes.
15. Régler l'interrupteur AUTO/OFF/MANUAL (Auto/ arrêt/ manuel) sur la
position OFF (Arrêt). Le moteur doit s'arrêter.
2.6
VÉRIFICATION DU
FONCTIONNEMENT AUTOMATIQUE
Afin de vérifier si le fonctionnement automatique du système est correct,
suivre les étapes suivantes :
1. Régler le disjoncteur principal du générateur sur sa position OFF
(Arrêt) (ou OPEN (ouverte)).
2. Vérifier si l'interrupteur AUTO/OFF/MANUAL (Auto/ arrêt/ manuel) est
réglé sur la position OFF (Arrêt).
3. Mettre HORS TENSION l'alimentation électrique publique vers le
commutateur de transfert à l'aide des moyens fournis (tels que le
disjoncteur principal du réseau public).
4. Régler manuellement le commutateur de transfert sur la position
UTILITY (Réseau public), c-à-d. les bornes de sortie branchées à la
source d'alimentation publique.
5. Mettre SOUS TENSION l'alimentation électrique publique vers le
commutateur de transfert à l'aide des moyens fournis (tels que le
disjoncteur principal du réseau public).
6. Régler le disjoncteur principal du générateur sur sa position ON
(Marche) (ou CLOSED (Fermée)).
7. Régler l'interrupteur AUTO/OFF/MANUAL (Auto/ arrêt/ manuel) sur la
position AUTO. Le système est désormais prêt pour un fonctionne-
ment automatique.
8. Mettre HORS TENSION l'alimentation électrique publique vers le
commutateur de transfert.
Avec l'interrupteur AUTO/OFF/MANUAL (Auto/ arrêt/ manuel) sur la
position AUTO, le moteur doit démarrer lorsque l'alimentation électrique
publique est mise HORS TENSION après un délai de 10 secondes. Après
le démarrage, le commutateur de transfert doit brancher les circuits de
charge au côté de secours après un délai de cinq (5) secondes. Laisser le
système traverser sa séquence automatique entière de fonctionnement.
Avec le générateur qui fonctionne et les charges alimentées par la sor-
tie CA du générateur, mettre SOUS TENSION l'alimentation électrique
publique vers le commutateur de transfert. Les événements suivants se
produisent :
Après environ 15 secondes, le commutateur doit transférer à nouveau • les charges vers la source d'alimentation publique.
Environ une minute après le transfert à nouveau, le moteur doit s'arrêter.•
Démarrage et ajustements après l'installation

99
3.1
INTERFACE DU PANNEAU DE COMMANDE
3.1.1 UTILISATION DE L'INTERRUPTEUR AUTO/OFF/
MANUAL (AUTO/ ARRÊT/ MANUEL) (SCHÉMA 3.1)
AVERTISSEMENT!
n Lorsque le commutateur est réglé sur AUTO, le
moteur peut démarrer à tout moment sans prévenir.
Un tel démarrage automatique se produit lorsque
la tension de la source d'alimentation électrique
publique chute en dessous d'un niveau prédéfini
ou pendant le cycle de programme de test normal.
Afin d'empêcher des blessures potentielles qui
pourraient être causées par ce démarrage soudain,
toujours régler le commutateur sur la position OFF
(Arrêt) et retirer les fusibles avant de travailler
sur ou autour du générateur ou du commutateur
de transfert. Ensuite, apposer une étiquette « DO
NOT OPERATE » (Ne pas faire fonctionner) sur le
panneau du générateur et sur le commutateur de
transfert.
1. Position « AUTO » – La sélection de ce commutateur active le fonc-
tionnement automatique du système. Il permet également à l'unité de
démarrer automatiquement et de tester le moteur tous les sept jours
avec le réglage du programme de test (voir la section Définition du
programme de test).
2. Position « OFF » (Arrêt) – Cette position du commutateur arrête le
moteur. Cette position empêche le fonctionnement automatique.
3. Position « MANUAL » (Manuel) – Régler le commutateur sur la
position MANUAL (Manuel) pour démarrer le moteur. Le transfert à
l'alimentation de secours ne se produira pas sauf s'il y a une coupure
du réseau public.
3.1.2 DÉFINITION DU PROGRAMME DE TEST
Ce générateur est équipé d'un programme de test. Une fois qu'il est défini,
le générateur démarrera et subira le programme de test tous les sept jours,
le jour de la semaine et l'heure du jour indiqués. Pendant cette période de
programme de test, l'unité fonctionne pendant environ 12 minutes, puis
s'arrête. Le transfert de charge vers la sortie du générateur ne se produit
pas pendant le cycle de programme de test sauf en cas de perte de l'ali-
mentation publique.
Figure 3.1 – Panneau de commande des générateurs
de 8/ 10/ 14/ 17 et 20 kW
ASSISTANT D'INSTALLATION
Fonction auto-test du système d'interconnexion (suivre les invites à
l'écran)
Lors de la mise sous tension, ce contrôleur subira un auto-test du sys-
tème qui vérifiera la présence du réseau public sur les circuits CC. Ce
test est effectué afin d'empêcher un dommage si l'installateur branche
par erreur les câbles de l'alimentation électrique CA au bloc de jonction
CC. Si la tension du réseau public est détectée, le contrôleur affichera un
message d'avertissement et verrouillera le générateur, empêchant des
dommages au contrôleur. Il faut retirer l'alimentation au contrôleur pour
effacer cet avertissement.
La tension du réseau public doit être mise sous tension et présente au
niveau des bornes N1 et N2 à l'intérieur du panneau de commande du
générateur pour ce test à passer et réussir.
REMARQUE :
LES DOMMAGES CAUSÉS PAR UN MAUVAIS CÂBLAGE DES CÂBLES
D'INTERCONNEXION NE SONT PAS GARANTIS !
Ce test sera effectué à chaque fois que le contrôleur est mis sous ten-
sion.
Lors de la première mise sous tension du générateur, l'interface de l'écran
lancera un assistant d'installation. L'assistant invitera l'utilisateur à régler
les paramètres minimum à faire fonctionner. Ces paramètres sont sim-
plement : Date/ heure actuelle et jour/ heure du programme de test. Les
intervalles de maintenance seront initialisés lorsque l'heure du programme
de test est entrée (Schéma 3.1).
Il est possible de modifier les paramètres du programme de test à tout
moment via le menu « EDIT » (Modifier) (voir Annexe, « Menu du sys-
tème »).
Si la batterie de 12 volts est débranchée ou si le fusible est retiré, l'assis-
tant d'installation fonctionnera lors de la restauration de l'alimentation. La
seule différence est que l'écran invitera seulement le client pour l'heure et
la date actuelles.
SI L'INSTALLATEUR TESTE LE GÉNÉRATEUR AVANT L'INSTALLATION,
APPUYER SUR LA TOUCHE « ENTER » (ENTRÉE) AFIN D'ÉVITER LE
RÉGLAGE DE L'HEURE DU PROGRAMME DE TEST. CELA GARANTIRA
QUE, LORSQUE L'INSTALLATEUR MET SOUS TENSION L'UNITÉ, IL SERA
TOUJOURS INVITÉ À ENTRER UNE HEURE DE PROGRAMME DE TEST.
REMARQUE :
Le programme de test fonctionnera uniquement en mode AUTO et
ne fonctionnera que si cette procédure est effectuée. La date/ heure
actuelle devra être réinitialisée à chaque fois que la batterie de 12 volts
est débranchée puis rebranchée, et/ou lorsque le fusible est retiré.
Test à basse vitesse
Les unités de 17 et 20 kW fonctionnent à 2 400 tr/mn.
MENUS DE L'INTERFACE DE L'ÉCRAN
L'écran LCD est organisé de la manière indiquée ci-dessous :
La page « Home » (Accueil), cette page est la page par défaut qui sera • affichée si l'on appuie sur aucune touche pendant 30 secondes. Cette
page affiche normalement le message d'état actuel et la date et l'heure
actuelles. L'alarme et/ou l'avertissement actif de la plus haute priorité
sera automatiquement affiché sur cette page ainsi que le rétroéclairage
clignotant lorsqu'un tel événement est détecté. En cas d'alarmes ou
d'avertissements multiples, seul le premier message sera affiché. Afin
d'effacer une alarme ou un avertissement, voir la section Systèmes de
protection - Effacer l'alarme.
Fonctionnement

100
Le rétroéclairage de l'écran s'éteint normalement. Si l'utilisateur appuie • sur une touche, le rétroéclairage s'allumera automatiquement et restera
pendant 30 secondes après avoir appuyé sur la dernière touche.
La page « Main Menu » (Menu principal) permettra à l'utilisateur de • naviguer sur toutes les autres pages ou sous-menus en utilisant les
touches Left/Right (Gauche/ droite) et Enter (Entrée). Il est possible
d'accéder à cette page à tout moment en appuyant plusieurs fois
sur la touche Escape (Échap). À chaque fois que l'on appuie sur
la touche Escape (Échap), on revient au menu précédent jusqu'à
atteindre le menu principal. Cette page affiche les options suivantes :
HISTORY (Historique) ; STATUS (Statut) ; EDIT (Modifier) ; et DEBUG
(Déboguer). (voir l'annexe - « Menu du système »).
3.2 FONCTIONNEMENT
AUTOMATIQUE DU TRANSFERT
Afin de sélectionner le fonctionnement automatique, effectuer les étapes
suivantes :
1. S'assurer que les principaux contacts du commutateur de transfert
sont réglés sur leur position UTILITY (Réseau public), c-à-d. les char-
ges branchées à l'alimentation électrique publique (Schéma 3.1).
2. S'assurer que la tension normale de l'alimentation électrique PUBLI-
QUE est disponible au niveau des cosses N1 et N2 du commutateur
de transfert (se reporter à la section Données électriques).
3. Régler l'interrupteur AUTO/OFF/MANUAL (Auto/ arrêt/ manuel) du
générateur sur la position AUTO.
4. Régler le disjoncteur principal du générateur sur sa position ON
(Marche) (ou CLOSED (fermée)).
Après avoir effectué les étapes précédentes, le générateur démarrera
automatiquement lorsque la tension de la source d'alimentation publique
chute en dessous d'un niveau prédéfini. Après le démarrage de l'unité,
les charges sont transférées sur la source d'alimentation de secours. Se
reporter à la section Séquence de fonctionnement automatique.
3.3 SÉQUENCE DE
FONCTIONNEMENT
AUTOMATIQUE
3.3.1 COUPURE DU RÉSEAU PUBLIC
Conditions initiales : Générateur sur la position Auto, prêt à fonctionner, charge
étant alimentée par la source d'alimentation publique. En cas de coupure du
réseau public (en dessous de 60 % de la valeur nominale), un délai d'inter-
ruption de ligne de 10 secondes débute (programmable facultativement). Si
la coupure du réseau public persiste lorsque la minuterie expire, le moteur
démarrera. Après le démarrage, une minuterie de réchauffage du moteur de
cinq (5) secondes débutera. Lorsque la minuterie de réchauffage expire, le
contrôle transférera la charge au générateur. Si l'alimentation électrique publi-
que est restaurée (au-dessus de 80 % de la valeur nominale) à tout moment
à compter du début du démarrage du moteur jusqu'à ce que le générateur
soit prêt à accepter la charge (et que le temps de réchauffage de 5 secondes
ne s'est pas écoulé), le contrôleur effectuera le cycle de démarrage et fera
fonctionner le générateur à son cycle de refroidissement normal ; cependant,
la charge restera sur la source d'alimentation publique.
3.3.2 DÉMARRAGE
Le système contrôlera le démarrage cyclique de la manière suivante :
Démarrage de 16 secondes, repos de sept (7) secondes, démarrage
de 16 secondes, repos de sept (7) secondes suivi de trois (3) cycles
supplémentaires de démarrages de sept (7) secondes suivi de repos de
sept (7) secondes.
Fonctionnement de l'étrangleur
1. Les moteurs 990/ 999 cc disposent d'un étrangleur électrique dans
la boîte à vent qui est automatiquement commandé par le tableau de
contrôle électrique.
2. Les moteurs 530 cc disposent d'un étrangleur électrique dans le
tuyau d'admission d'air du panneau de la cloison qui est automati-
quement commandé par le tableau de contrôle électrique.
3. Les moteurs 410 cc disposent d'un étrangleur derrière la boîte à
vent qui est automatiquement commandé par le tableau de contrôle
électrique.
Panne de démarrage
Elle est définie comme l'un des événements suivants survenant pendant
le démarrage:
1. N'atteignant pas la mise au repos du démarreur dans le cycle de
démarrage déterminé. La mise au repos du démarreur est définie
comme quatre (4) cycles à 1 000 RPM.
2. Atteignant la mise au repos du démarreur mais n'atteignant pas
2 200 RPM dans un délai de 15 secondes. Dans ce cas, le tableau de
contrôle entrera dans un cycle de repos pendant sept (7) secondes,
puis continuera le reste du cycle de démarrage.
Pendant un cycle de repos, les sorties de démarrage et de combustible
sont mises hors tension et la sortie de magnéto est court-circuitée vers
la mise à la terre.
Conditions de démarrage
Les remarques suivantes s'appliquent pendant le cycle de démarrage.
1. Le moteur du démarreur ne s'engagera pas dans un délai de cinq (5)
secondes après l'arrêt du moteur.
2. La sortie de combustible ne sera pas mise sous tension avec le
démarreur.
3. Les sorties du démarreur et de la magnéto seront mises sous ten-
sion ensemble.
4. Après la mise sous tension du démarreur, le tableau de contrôle
commencera à chercher la rotation du moteur. S'il ne voit pas de
signal RPM dans un délai de trois (3) secondes, il s'arrêtera et se
verrouillera lors de la perte de capteur RPM.
5. Une fois que le tableau de contrôle voit un signal RPM, il mettra sous
tension le solénoïde de combustible, ouvrira le papillon et continuera
la séquence de démarrage.
6. Le moteur du démarreur se désengagera lorsque la vitesse atteindra
la mise au repos du démarreur.
7. Si le générateur n'atteint pas 2 200 RPM dans un délai de 15 secon-
des, le cycle de redémarrage aura lieu.
8. Si le moteur arrête de tourner entre la mise au repos du démarreur
et 2 200 RPM, le tableau entrera en cycle de repos pendant sept
(7) secondes, puis redémarrera (en cas de cycles de démarrage
supplémentaires).
9. Après le démarrage, le générateur attendra pendant une période de
retenue commençant à surveiller la pression d'huile et la température
d'huile (se reporter à la section Messages d'alarme pour connaître
les périodes de retenue).
10. Pendant le démarrage manuel, si le sélecteur de mode est déplacé
sur la position Manual (Manuel), le démarrage s'arrête immédiate-
ment.
11. Pendant le démarrage en mode Auto, si le réseau électrique revient,
le cycle de démarrage ne s'interrompra PAS mais continuera jusqu'au
bout. Une fois que le moteur démarre, il fonctionnera pendant une (1)
minute, puis s'arrêtera.
Fonctionnement

101
3.3.3 TRANSFERT DE CHARGE
Pendant le fonctionnement du générateur, le transfert de charge dépend du
mode de fonctionnement comme suit :
1. Manuel
Ne transférera pas au générateur si le réseau public est présent.•
Transférera au générateur en cas de coupure du réseau public (en • dessous de 65 % de la valeur nominale) pendant 10 secondes
consécutives.
Transférera à nouveau lorsque le réseau public revient pendant • 15 secondes consécutives. Le moteur continuera à fonctionner
jusqu'à ce qu'il soit retiré du mode Manual (Manuel).
2. Auto
Démarrera et transférera lorsque le réseau public est coupé pendant • 10 secondes consécutives.
Démarrera une minuterie de réchauffage du moteur de cinq • (5) secondes.
Ne transférera pas si le réseau public revient par la suite.•
Transférera au générateur si le réseau public n'est toujours pas présent.•
Transférera à nouveau au réseau public une fois que le réseau • public revient (au-dessus de 75 % de la valeur nominale) pendant
15 secondes.
Transférera à nouveau au réseau public si le générateur s'arrête pour • quelle que raison que ce soit (tel que lorsque le commutateur est sur
la position OFF (Arrêt)) ou une alarme d'arrêt.
Après le transfert, le moteur s'arrêtera après un temps de refroidis-• sement d'une (1) minute.
3. Programme de test
Ne s'effectuera pas si le générateur fonctionne déjà en mode Auto • ou Manual (Manuel).
Pendant le programme de test, le contrôleur transférera uniquement • en cas de coupure du réseau public pendant le programme de test
pendant 10 secondes, et passera en mode Auto.
3.3.4 RESTAURATION DU RÉSEAU PUBLIC
Condition initiale : Générateur alimentant la charge du client. Lorsque le
réseau public revient (au-dessus de 80 % de la valeur nominale), un retour de
15 secondes vers le réseau public démarrera. Lorsque cette minuterie expire, si
l'alimentation électrique publique est toujours présente et acceptable, le contrôle
transférera la charge à nouveau au réseau public et fera fonctionner le moteur
pendant une période de refroidissement d'une (1) minute, puis s'arrêtera. En
cas de panne du réseau public de trois (3) secondes pendant cette période de
refroidissement, le contrôle transférera la charge à nouveau au générateur et
continuera à fonctionner en surveillant le retour du réseau public.
3.4 FONCTIONNEMENT MANUEL
DU TRANSFERT
3.4.1
TRANSFERT À L'ALIMENTATION ÉLECTRIQUE DU
GÉNÉRATEUR
Afin de démarrer le générateur et d'activer le commutateur de transfert
manuellement, effectuer les étapes suivantes :
1. Régler l'interrupteur AUTO/OFF/MANUAL (Auto/ arrêt/ manuel) du
générateur sur la position OFF (Arrêt).
2. Régler le disjoncteur principal du générateur sur sa position OFF
(Arrêt) (ou OPEN (Ouverte)).
3. Mettre HORS TENSION l'alimentation électrique publique vers le
commutateur de transfert à l'aide des moyens fournis (tels que le
disjoncteur principal du réseau public).
Ne pas essayer d'activer le commutateur de
transfert manuellement tant que toutes les
tensions d'alimentation fournies au commutateur
de transfert n'ont pas été mises hors tension
positivement. Le fait de ne pas mettre hors
tension les tensions d'alimentation peut entraîner
une électrocution extrêmement dangereuse et
potentiellement fatale.
4. Utiliser la poignée de transfert manuel à l'intérieur du commutateur
de transfert afin de mettre les principaux contacts sur leur position
STANDBY (Secours), c-à-d. les charges branchées à la source d'ali-
mentation de secours (Schéma 3.2).
Schéma 3.2 – Fonctionnement manuel du commutateur
de transfert
CHARGE BRANCHÉE À LA SOURCE D'ALIMENTATION PUBLIQUE
CHARGE BRANCHÉE À LA SOURCE D'ALIMENTATION DE SECOURS
POIGNÉE DE
TRANSFERT MANUEL
LEVIER DE COMMANDE DU
COMMUTATEUR DE TRANSFERT
5. Afin de démarrer le moteur, régler l'interrupteur AUTO/OFF/MANUAL
(Auto/ arrêt/ manuel) sur la position MANUAL (Manuel).
6. Laisser le moteur se stabiliser et chauffer pendant quelques minu-
tes.
7. Régler le disjoncteur principal du générateur sur sa position ON
(Marche) (ou CLOSED (fermée)). La source d'alimentation de
secours alimente désormais les charges.
3.4.2 TRANSFERT À NOUVEAU À LA SOURCE
D'ALIMENTATION PUBLIQUE
Après la restauration de l'alimentation électrique publique, transférer à
nouveau à cette source et arrêter le générateur. Pour cela, effectuer les
étapes suivantes :
1. Régler le disjoncteur principal du générateur sur sa position OFF
(Arrêt) (ou OPEN (ouverte)).
2. Laisser le moteur fonctionner à circuit ouvert pendant une ou deux
minute(s) afin que les températures internes se stabilisent.
3. Régler l'interrupteur AUTO/OFF/MANUAL (Auto/ arrêt/ manuel) du
générateur sur sa position OFF (Arrêt) (ou OPEN (ouverte)). Le
moteur doit s'arrêter.
4. Vérifier si l'alimentation électrique publique vers le commutateur de
transfert est hors tension.
Fonctionnement

102
Ne pas essayer d'activer le commutateur de
transfert manuellement tant que toutes les
tensions d'alimentation fournies au commutateur
de transfert n'ont pas été mises hors tension
positivement. Le fait de ne pas mettre hors
tension les tensions d'alimentation peut entraîner
une électrocution extrêmement dangereuse et
potentiellement fatale.
5. Utiliser la poignée de transfert manuel à l'intérieur du commutateur
de transfert afin de mettre les principaux contacts sur leur position
UTILITY (Réseau public), c-à-d. les charges branchées à la source
d'alimentation publique (Schéma 3.2).
6. Mettre SOUS TENSION l'alimentation électrique publique vers le
commutateur de transfert à l'aide des moyens fournis.
7. Régler le système en fonctionnement automatique comme indiqué
dans la section Fonctionnement automatique du transfert.
3.5 COMPARTIMENT LATÉRAL
(SCHÉMAS 3.3 ET 3.4)
Les codes locaux peuvent exiger que ce compartiment soit verrouillé. Un
fermoir est fourni afin que le propriétaire puisse sécuriser le compartiment
avec son propre cadenas. Vérifier les codes locaux de la région.
3.5.1 DISJONCTEUR PRINCIPAL
Il s'agit d'un disjoncteur bipolaire nominal selon la section Caractéristiques
techniques.
3.5.2
TÉMOINS LUMINEUX EXTÉRIEURS « READY » (PRÊT)
La DEL verte « Ready » (Prêt) est allumée lorsque le réseau public est • présent et que le commutateur est sur la position AUTO indiquant que
le générateur est prêt, et lorsque le générateur fonctionne.
La DEL rouge « Alarm » (Alarme) est allumée lorsque le générateur est • en position OFF (Arrêt) ou qu'une erreur est détectée. (Voir la section
Systèmes de protection.)
La DEL jaune « Maintenance » (Voir la section Systèmes de protec-• tion.)
3.5.3 PRISE DDFT DE 120 VCA ET DISJONCTEUR DE
15 A (17 ET 20 KW UNIQUEMENT)
Ces modèles sont équipés d'une prise DDFT externe de 15 A, 120 volts,
qui est située dans un compartiment sur le côté droit du générateur
(Schéma 1.3).
Lorsque le générateur fonctionne, en l'absence d'alimentation électrique
publique, cette prise peut également être utilisée pour alimenter les
éléments à l'extérieur de votre domicile tels que les lumières et les outils
électriques. Cette prise peut également être utilisée lorsque l'alimentation
électrique publique est présente en faisant fonctionner le générateur en
mode Manual (Manuel). Cette prise ne fournit pas d'alimentation si le
générateur ne fonctionne pas. Cette prise est protégée par un disjoncteur
de 15 A dans le même compartiment que la prise. (Ne pas utiliser lorsque
le générateur fonctionne en mode de programme de test.)
Schéma 3.3 – Compartiment latéral
Schéma 3.4 – Compartiment latéral ouvert
Sortie DDFT de 120 V Disjoncteur de sortie de 15 A
Disjoncteur principalTémoins lumineux DEL
3.6 SYSTÈMES DE PROTECTION
3.6.1 ALARMES
La plus haute priorité (verrouillage) affichée sur le panneau de com-
mande et la DEL externe rouge. Elles doivent être effacées avant que le
message d'alarme ne disparaisse. Le journal d'alarmes enregistre chaque
événement (voir Annexe - « Menu du système »).
Pression d'huile basse (Alarme d'arrêt)
Un délai de cinq (5) secondes lors du démarrage et un délai de sept (7)
secondes une fois que le moteur fonctionne.
Ce commutateur (Schéma 3.5) a des contacts normalement fermés qui
sont maintenus ouverts par la pression d'huile du moteur pendant le
fonctionnement. Si la pression d'huile chute en dessous de la plage de
cinq (5) livres par pouce carré, les contacts du commutateur se ferment
et le moteur s'arrête. L'unité ne doit pas être redémarrée tant que le niveau
d'huile n'est pas vérifié.
Fonctionnement

103
Température élevée du moteur (Alarme d'arrêt –
réinitialisation auto)
Un délai de 10 secondes lors du démarrage et un délai d'une (1) seconde
avant l'arrêt. Effectuer une réinitialisation automatique lorsque la condition
disparaît, et redémarrer le moteur si un signal de démarrage valide est
toujours présent.
Les contacts de ce commutateur (Schéma 3.5) se ferment lorsque la
température est supérieure à environ 144 °C (293 °F), entraînant un arrêt
du moteur. Une fois que la température d'huile chute à un niveau sûr, les
contacts du commutateur s'ouvrent à nouveau.
Démarrage excessif (Alarme d'arrêt)
Cela se produit si le moteur n'a pas démarré dans le cycle de démarrage
déterminé. (Voir la section « Démarrage ».)
REMARQUE :
Le tuyau de vidange d'huile peut être acheminé dans le sens opposé
comme indiqué dans le schéma.
Schéma 3.5 – Commutateurs de pression d'huile basse
et de température élevée
Filtre à
huile
Tuyau de
vidange
d'huile
Commutateur de
niveau bas d'huile
Commutateur de
temp. élevée
D
e
s
s
e
r
r
e
r
Survitesse (Alarme d'arrêt)
4 320 RPM pendant trois (3) secondes ou 4 500 RPM immédiatement.
Cette fonction protège le générateur des dommages en l'arrêtant s'il
fonctionne plus vite que la limite prédéfinie. Cette protection empêche
également le générateur d'alimenter une sortie qui pourrait potentiellement
endommager les appareils branchés au circuit du générateur. Contacter le
dépositaire le plus proche au cas où cette erreur se produit.
Perte de capteur RPM (Alarme d'arrêt)
Lors du démarrage, si le tableau de contrôle ne voit pas de signal RPM
valide dans un délai de trois (3) secondes, il s'arrêtera et se verrouillera
lors de la perte de capteur RPM. Lorsque le moteur fonctionne, en cas
de perte de signal RPM pendant une (1) seconde, le tableau de contrôle
arrêtera le moteur, attendre 15 secondes, puis redémarrer le moteur. Si
aucun signal RPM n'est détecté dans un délai de trois (3) secondes après
le démarrage, le tableau de contrôle arrêtera le moteur et se verrouillera
lors de la perte de capteur RPM. En cas de détection du signal RPM, le
moteur démarrera et fonctionnera normalement. Si le signal RPM est
perdu à nouveau par la suite, le tableau de contrôle fera une autre tentative
de redémarrage avant de verrouiller et d'afficher le message d'erreur du
capteur RPM.
Sous-fréquence (Alarme d'arrêt)
Après le démarrage, si le générateur reste en sous-fréquence pendant
plus de 30 secondes, il s'arrêtera. Le réglage de sous-fréquence est de
50 Hz.
Erreur interne (Alarme d'arrêt)
Il est impossible de supprimer cette alarme. Appeler le dépositaire d'en-
tretien.
Sous-tension (Alarme d'arrêt)
Si la tension du générateur va en dessous de 60 % de la valeur nominale
pendant plus de cinq (5) secondes, il s'arrête.
Surtension (Alarme d'arrêt)
Si la tension du générateur va au dessus de 110 % de la valeur nominale
pendant plus de trois (3) secondes, une alarme est émise et l'appareil
s'éteint.
Si la tension du générateur va au dessus de 130 % de la valeur nominale
pendant plus de trois (0,2) secondes, une alarme est émise et l'appareil
s'éteint.
Effacer l'alarme
Supprimer l'alarme en réglant l'interrupteur AUTO/OFF/MANUAL (Auto/
arrêt/ manuel) sur la position OFF (Arrêt). Appuyer sur la touche ENTER
(Entrée) afin de déverrouiller toute erreur active et d'effacer le message
d'alarme correspondant.
3.6.2 RELAIS AVERTISSEUR COMMUN
Le relais avertisseur commun sera activé s'il y a une alarme d'arrêt. Il
ne s'activera pas lors des avertissements ou indiquera que l'interrupteur
AUTO/OFF/MANUAL (Auto/ arrêt/ manuel) est sur la position OFF (Arrêt).
La position OFF (Arrêt) supprimera les alarmes et le relais. Le relais ne
sera pas utilisé pour indiquer qu'un générateur n'est pas activé.
Les terminaux d'alarme communs sont câblés à un ensemble des
contacts (secs) sans potentiel sur la carte du contrôleur Nexus. Ces
contacts Normalement ouverts (N.O.) se ferment lorsqu'une condition
d'alarme se produit et servent à activer un dispositif de signalement à
distance. Le circuit est conçu pour un maximum de 130 mA à 24 VCC.
3.6.3 AVERTISSEMENTS
Priorité secondaire (pas de verrouillage) affichée sur le panneau de
commande et la DEL externe rouge (unité à deux cylindres uniquement).
Les avertissements s'effacent automatiquement lorsque la condition
surveillée disparaît. Les avertissements sont enregistrés dans le journal
d'alarmes. Les avertissements ne peuvent pas causer d'arrêts.
Batterie faible
Le tableau de contrôle surveille la tension de la batterie et affiche un
avertissement si la tension de la batterie chute en dessous de 11,9 volts
pendant une (1) minute. L'avertissement est automatiquement effacé si la
tension de la batterie augmente au-dessus de 12,4 volts. La tension de la
batterie n'est pas surveillée pendant le cycle de démarrage.
Erreur de réglage du programme de test
Si le programme de test devient corrompu, un message d'avertissement
s'affichera. Ce message s'effacera uniquement lorsque la période du pro-
gramme de test sera réinitialisée.
Fonctionnement

104
3.6.4 ALERTES DE MAINTENANCE
Priorité tertiaire
Message de maintenance
Lorsqu'une période de maintenance expire, un message d'avertissement
s'affichera. Il est possible de réinitialiser l'alerte en appuyant sur la touche
Enter (Entrée), ce qui invitera l'utilisateur à confirmer l'action. La réinitia-
lisation effacera l'alerte et réinitialisera les compteurs de maintenance
pour toutes les conditions annoncées. Le journal d'historique enregistrera
l'alerte. Le compteur de maintenance ne s'accumulera pas sans l'alimen-
tation de la batterie. Une fois que l'alimentation de la batterie est restaurée,
l'invite de temps déterminé s'affichera. Les compteurs de maintenance
seront réglés selon la nouvelle heure et la nouvelle date.
REMARQUE :
Étant donné que les alertes de maintenance ne se produiront pas en
même temps (la plupart ont deux (2) ans d'intervalle), une alerte s'af-
fichera à la fois. Une fois que la première alerte est effacée, l'alerte
active suivante s'affichera.
4.1 FUSIBLE
Le fusible de 7,5 A sur le panneau de commande protège le circuit de
contrôle CC contre la surcharge (Schémas 3.1 et 3.2). Ce fusible est câblé
en série avec le fil de sortie de la batterie au panneau. Si ce fusible a fondu,
le moteur sera dans l'incapacité de tourner ou de démarrer. Remplacer ce
fusible uniquement par un fusible de 7,5 A identique de rechange. Lorsque le
fusible est retiré ou remplacé, il faut réinitialiser le programme de test.
4.2 VÉRIFICATION DU NIVEAU
D'HUILE DU MOTEUR
Pour connaître les capacités d'huile, voir la section Caractéristiques tech-
niques. Pour connaître les recommandations en matière d'huile de moteur,
voir la section Recommandations d'huile de moteur.
Lorsque les coupures de courant nécessitent de faire fonctionner le géné-
rateur pendant des périodes prolongées, il faut vérifier le niveau d'huile
quotidiennement.
Pour vérifier le niveau d'huile de moteur, effectuer les étapes suivantes
(Schémas 4.1, 4.2 et 4.3) :
1. Si le générateur fonctionne pendant une coupure de courant, mettre
d'abord HORS TENSION toutes les charges associées fonctionnant
dans la résidence. Ensuite, régler le disjoncteur principal du généra-
teur sur sa position OFF (Arrêt).
2. Régler l'interrupteur AUTO/OFF/MANUAL (Auto/ arrêt/ manuel) sur la
position OFF (Arrêt).
3. Retirer la jauge d'huile et l'essuyer avec un chiffon propre.
4. Insérer complètement la jauge d'huile ; puis, la retirer à nouveau. Le
niveau d'huile doit être à la marque « Full » (Plein) dans la jauge d'huile.
Si nécessaire, ajouter de l'huile jusqu'à la marque « Full » (Plein) unique-
ment. NE PAS REMPLIR AU-DESSUS DE LA MARQUE FULL (PLEIN).
5. Installer la jauge d'huile.
6. Régler l'interrupteur AUTO/OFF/MANUAL (Auto/ arrêt/ manuel) sur sa
position d'origine.
7. Si le générateur fonctionnait pendant une coupure de courant, remet-
tre d'abord le disjoncteur principal du générateur sur la position ON
(Marche). Ensuite, mettre SOUS TENSION les charges nécessaires
dans la résidence.
ATTENTION
!
nNe jamais faire fonctionner le moteur avec le
niveau d'huile en dessous de la marque « Add »
(Ajouter) sur la jauge d'huile. Cette action
endommagerait le moteur.
Schéma 4.1 — Jauge et remplissage d'huile, 8 kW
Jauge et remplissage d'huile
Schéma 4.2 — Jauge d'huile, 10 kW
Schéma 4.3 — Jauge et remplissage d'huile,
14, 17 et 20 kW
Jauge d'huile
Remplissage
d'huile
Maintenance

4.3
CHANGEMENT DE L'HUILE DU
MOTEUR
ATTENTION
!
n De l'huile chaude peut entraîner des brûlures.
Laisser le moteur refroidir avant de vidanger l'huile.
Éviter un contact prolongé ou répété de la peau
avec de l'huile usagée. Laver minutieusement les
zones exposées avec du savon.
4.3.1 INTERVALLES DE CHANGEMENT D'HUILE
Voir la section « Calendrier d'entretien ».
4.3.2 RECOMMANDATIONS D'HUILE DE MOTEUR
Toute huile doit respecter la catégorie de service minimale SJ, SL ou
mieux de l'American Petroleum Institute (API) (Institut américain du
pétrole). N'utiliser aucun additif spécial. Sélectionner le degré de viscosité
d'huile selon la température d'exploitation prévue.
SAE 30 • Î Supérieure à 32 °F
10W-30 • Î Entre 40 °F et - 10 °F
5W-30 synthétique • Î 10 °F et inférieur
SAE 30
SAE 30
5W-30 synthétique
5W-30 synthétique
10W-30
10W-30
Plage de températures de l'utilisation prévue
ATTENTION
!
n Toute tentative de faire tourner ou de démarrer le
moteur avant qu'il ait été correctement entretenu
avec l'huile recommandée peut entraîner une
panne du moteur.
4.3.3 PROCÉDURE DE CHANGEMENT D'HUILE ET DE
FILTRE À HUILE
Pour changer l'huile, effectuer les étapes suivantes :
1. Démarrer le moteur en mettant l'interrupteur AUTO/OFF/MANUAL
(Auto/ arrêt/ manuel) sur la position MANUAL (Manuel) et faire
fonctionner jusqu'à ce qu'il soit entièrement chauffé. Puis, arrêter le
moteur en mettant l'interrupteur sur la position OFF (Arrêt).
2. Immédiatement après l'arrêt du moteur, tirer le tuyau de vidange
d'huile (Schéma 4.4) de son ressort de retenue. Retirer le bouchon
du tuyau et vider l'huile dans un récipient approprié.
3. Après avoir vidé l'huile, remplacer le bouchon sur l'extrémité du tuyau
de vidange d'huile. Retenir le tuyau dans le ressort.
Changer le filtre à huile du moteur de la manière suivante :
1. Lorsque l'huile est vidée, retirer l'ancien filtre à huile en le tournant
dans le sens inverse des aiguilles d'une montre.
2. Appliquer une légère couche d'huile de moteur propre sur le joint
du nouveau filtre. Voir la section Caractéristiques techniques pour
connaître le filtre recommandé.
3. Visser le nouveau filtre à la main jusqu'à ce que son joint entre légè-
rement en contact avec l'adaptateur du filtre à huile. Puis, serrer le
filtre d'un 3/4 de tour supplémentaire (Schéma 4.4).
4. Remplir avec de l'huile recommandée propre (voir la section
Recommandations d'huile de moteur). Voir la section Caractéristiques
techniques pour connaître les capacités d'huile.
5. Démarrer le moteur, faire fonctionner pendant une (1) minute, et
vérifier s'il y a des fuites.
6. Arrêter et vérifier à nouveau le niveau d'huile, ajouter si nécessaire.
NE PAS TROP REMPLIR.
7. Régler l'interrupteur AUTO/OFF/MANUAL (Auto/ arrêt/ manuel) sur la
position AUTO.
8. Éliminer l'huile usagée dans un centre de collecte approprié.
REMARQUE :
Le tuyau de vidange d'huile peut être acheminé dans le sens opposé
comme indiqué dans le schéma.
Schéma 4.4 – Tuyau de vidange d'huile et filtre
Filtre à
huile
Tuyau de
vidange
d'huile
Commutateur de
niveau bas d'huile
Commutateur de
temp. élevée
D
e
s
s
e
r
r
e
r
4.4 CHANGEMENT DU FILTRE À
AIR DU MOTEUR
4.4.1 GÉNÉRATEURS DE 14, 17 ET 20 KW
Voir la section « Le générateur » pour connaître l'emplacement du filtre à
air. Effectuer les procédures suivantes (Schéma 4.5) :
1. Soulever le toit et retirer la porte.
2. Tourner les deux vis dans le sens inverse des aiguilles d'une montre
pour desserrer.
3. Retirer le couvercle et le filtre à air.
4. Essuyer la poussière ou les débris de l'intérieur de la boîte à vent et
sur les bords.
5. Installer le nouveau filtre à air dans la boîte à vent.
6. Installer le couvercle. Tourner les deux vis du couvercle dans le sens
des aiguilles d'une montre pour serrer.
Voir la section Calendrier d'entretien pour connaître la maintenance du
filtre à air. Voir la section Caractéristiques techniques pour connaître la
référence des pièces de rechange du filtre à air.
105
Maintenance

106
Schéma 4.5 — Filtre à air du moteur de
14, 17 et 20 kW
Couvercle
Filtre
Vis
4.4.2 GÉNÉRATEURS DE 10 KW
Voir la section « Le générateur » pour connaître l'emplacement du filtre à
air. Suivre les procédures suivantes (Schéma 4.6) :
1. Soulever le toit et retirer la porte.
2. Tourner la vis de serrage de l'engrenage à vis sans fin dans le sens
inverse des aiguilles d'une montre pour desserrer.
3. Retirer l'ancien filtre du moyeu du panneau de la cloison.
4. Essuyer la poussière ou les débris du moyeu du panneau.
5. Installer le nouveau filtre à air sur le moyeu.
6. Tourner la vis de serrage de l'engrenage à vis sans fin dans le sens
des aiguilles d'une montre pour serrer.
7. Remettre en place la porte et le toit.
Schéma 4.6 — Filtre à air du moteur de 10 kW
Filtre à air
4.4.3 GÉNÉRATEUR DE 8 KW
Voir la section « Le générateur » pour connaître l'emplacement de la boîte
à vent. Suivre les procédures suivantes pour remplacer le filtre à air sale
dans la boîte à vent (Schéma 4.7).
1. Soulever le toit et retirer la porte.
2. Repousser le loquet de la porte d'accès jaune du filtre à air pour
ouvrir.
3. Retirer l'ancien filtre à air et le jeter si nécessaire.
4. Installer le nouveau filtre, ouvrir l'extrémité en premier dans la boîte à
vent.
5. Ouvrir la porte jaune et la fermer d'un coup.
6. Remettre la porte en place et fermer fermement le toit.
Schéma 4.7 — Emplacement du filtre à air du moteur
de 8 kW
Couvercle
du filtre
à air
4.5 BOUGIE(S) D'ALLUMAGE
Corriger le réglage de l'écartement de la (des) bougie(s) d'allumage ou
remplacer la (les) bougie(s) d'allumage si nécessaire. Voir la section
Calendrier d'entretien pour connaître les exigences relatives à la mainte-
nance.
1. Nettoyer la zone autour de la base de la (des) bougie(s) d'allumage
pour éliminer la poussière ou les débris du moteur.
2. Retirer la (les) bougie(s) d'allumage et vérifier son (leur) état.
Remplacer la (les) bougie(s) d'allumage si elle(s) est (sont) usée(s)
ou en cas de doute sur son (leur) réutilisation. Voir la section
Calendrier d'entretien pour connaître l'inspection recommandée.
Nettoyer en grattant ou en lavant à l'aide d'une brosse métallique
et d'un solvant du commerce. Ne pas faire sauter la (les) bougie(s)
d'allumage pour la (les) nettoyer.
3. Vérifier l'écartement de bougie d'allumage à l'aide d'une jauge
d'épaisseur à fils. Régler l'écartement à 0,76 mm (0,030 pouce) pour
8, 10 et 20 kW ; et à 1,02 mm (0,040 pouce) pour 13, 14, 16 et
17 kW en pliant soigneusement l'électrode de masse (Schéma 4.8).
Schéma 4.8 – Réglage de l'écartement de bougie
d'allumage
Maintenance

107
4.6 ENTRETIEN DE LA BATTERIE
Il faut inspecter la batterie conformément à la section « Calendrier d'entre-
tien » Il faut suivre la procédure suivante pour effectuer l'inspection :
1. Vérifier si les bornes et les câbles de la batterie sont étanches et
s'ils ne présentent pas de signe de corrosion. Serrer et nettoyer si
nécessaire.
2. Vérifier le niveau de fluide de batterie des batteries non scellées et, si
nécessaire, remplir avec de l'eau distillée uniquement. Ne pas mettre
d'eau du robinet dans les batteries.
3. Vérifier l'état de charge et l'état général. Cela doit être effectué à l'aide
d'un densimètre de type automobile.
Ne pas jeter la batterie dans un feu. La batterie
pourrait exploser.
Une batterie présente un risque d'électrocution et
un courant de court-circuit élevé. Il faut prendre
les précautions suivantes lors du travail sur les
batteries :
• Retirer le fusible de 7,5 A à partir du panneau de
commande du générateur.
• Retirer les montres, bagues et autres objets en métal.
• Utiliser des outils avec des poignées isolées.
• Porter des gants et des chaussures en caoutchouc.
• Ne pas poser d'outils ou de pièces métalliques sur la
batterie.
• Débrancher la source de chargement avant de
brancher ou de débrancher les bornes de batterie.
AVERTISSEMENT!
n
Ne pas ouvrir ou mutiler la batterie. L'électrolyte
libéré s'est avéré être nocif pour la peau et les
yeux, et également toxique.
n
L'électrolyte est un acide sulfurique dilué
qui est nocif pour la peau et les yeux. Il est
électriquement conducteur et corrosif. Il faut
respecter les procédures suivantes :
• Porter des lunettes et des vêtements de protection.
• Lorsque l'électrolyte entre en contact avec la peau,
laver immédiatement avec de l'eau.
• Lorsque l'électrolyte entre en contact avec les yeux,
rincer complètement et immédiatement avec de l'eau
et consulter un médecin.
• L'électrolyte renversé doit être lavé avec un agent
neutralisant acide. Une pratique courante consiste
à utiliser une solution de 1 livre (500 grammes) de
bicarbonate de soude dans 1 gallon (4 litres) d'eau.
Il faut ajouter du bicarbonate de soude jusqu'à ce
que la preuve de la réaction (moussage) ait cessé.
Il faut rincer le liquide résultant avec de l'eau et
sécher la zone.
Les batteries au plomb présentent un risque
d'incendie étant donné qu'elles produisent du
gaz hydrogène. Il faut suivre les procédures
suivantes :
• NE PAS FUMER à proximité de la batterie.
• NE PAS provoquer de flammes ou d'étincelles dans la
batterie.
• Décharger l'électricité statique du corps avant de
toucher la batterie en touchant d'abord une surface
métallique mise à la terre.
n
S'assurer que l'interrupteur AUTO/OFF/MANUAL
(AUTO/ ARRÊT/ MANUEL) est réglé sur la posi-
tion OFF (Arrêt) avant de brancher les câbles de
batterie. Si l'interrupteur est réglé sur la position
AUTO ou MANUAL (Manuel), le générateur peut
démarrer dès que les câbles de batterie sont
branchés.
S'assurer que l'alimentation électrique publique
soit hors tension et que le fusible de 7,5 A soit
retiré du panneau de commande du générateur ou
qu'une décharge disruptive ne se produise pas au
niveau des bornes de batterie où les câbles sont
fixés et cause une explosion.
4.7 RÉGLAGE DU JEU DES
SOUPAPES GH-410/GT-530/
990/999
Après les six (6) premiers mois de fonctionnement, vérifier le jeu des
soupapes dans le moteur et l'ajuster si cela est nécessaire.
IMPORTANT : Si vous n'êtes pas sûr de vous pour effectuer cette pro-
cédure ou si les outils ne sont pas disponibles, veuillez contacter le
dépositaire pour obtenir de l'aide pour l'entretien. Il s'agit d'une étape très
importante pour garantir la meilleure durée de vie du moteur.
Pour vérifier le jeu des soupapes :
Le moteur doit être froid avant la vérification. Si le jeu des soupapes • est de 0,002 po. - 0,004 po. (0,05 - 0,1 mm), aucun réglage n'est
pas nécessaire.
Retirer les fils de bougie et les placer loin des bougies.•
Retirer les bougies d'allumage.•
S'assurer que le piston est au Point Mort Haut (PMH) de sa course de • compression (les deux soupapes fermées). Pour mettre le piston au
PMH, retirer la grille d'entrée devant le moteur afin d'accéder à l'écrou
du volant. Utiliser une grande douille et une clé à pipe pour tourner
l'écrou, et donc le moteur, dans le sens des aiguilles d'une montre. En
même temps, observer le piston par le trou de la bougie d'allumage.
Le piston doit monter et descendre. Le piston est au PMH lorsqu'il est
à son plus haut point de course.
Afin de régler le jeu des soupapes (si nécessaire), (Schéma 4.9) :
S'assurer que la température du moteur est située entre 60 et 80 °F.•
S'assurer que le fil de bougie est débranché de la bougie d'allumage • et ne gêne pas.
Enlever les quatre vis retenant le coin de la soupape.•
Desserrer l'écrou de blocage du culbuteur. Utiliser une clé hexago-• nale de 10 mm pour faire tourner l'axe de l'articulation à rotule tout
en vérifiant le jeu entre le culbuteur et la tige de soupape avec un
calibre d'épaisseur. Le jeu correct est de 0,002-0,004 pouces (0,05-
0,1 mm).
REMARQUE :
Tenir l'écrou de blocage du culbuteur en place pendant que l'on fait
tourner l'axe de l'articulation à rotule.
Maintenance

108
Lorsque le jeu des soupapes est correct, maintenir l'axe de l'articulation à
rotule en place à l'aide de la clé hexagonale et resserrer l'écrou de blocage
du culbuteur. Serrer l'écrou de blocage à un couple de 174 pouces-livres.
Après avoir resserré l'écrou de blocage, revérifier le jeu des soupapes
pour s'assurer qu'il n'a pas changé.
Installer le nouveau joint de couvercle de soupape.•
Replacer le couvercle de soupape.•
Schéma 4.9 — Réglage du jeu des soupapes
Écrou de
blocage
Axe de
l'articulation
à rotule
Culbuteur
Tige de
soupape
REMARQUE :
Commencer à visser les quatre vis avant de les resserrer toutes, sinon
il sera impossible de mettre toutes les vis. S'assurer que le joint du
couvercle de soupape est en place.
Installer les bougies d'allumage.•
Rebrancher le fil de bougie à la bougie d'allumage.•
Sur le GT-530 et le GT-990/999, répéter la procédure pour l'autre • cylindre.
4.8
SYSTÈME DE REFROIDISSEMENT
Les orifices d'entrée et de sortie d'air du compartiment du générateur
doivent être ouverts et non obstrués pour un bon fonctionnement continu.
Cela inclut les obstructions telles que les herbes hautes, les mauvaises
herbes, la brosse, les feuilles et la neige.
Sans débit d'air de refroidissement et de ventilation suffisant, le moteur /
générateur surchauffe rapidement, ce qui provoque un arrêt rapide. (Voir
Schéma 4.10 pour connaître l'emplacement des évents.)
S'assurer que les portes et le toit sont en place pendant le fonctionnement
étant donné que le fonctionnement du générateur avec ces éléments reti-
rés peut provoquer un mouvement de l'air de refroidissement.
AVERTISSEMENT!
L'échappement de ce produit est extrêmement
chaud et reste chaud après l'arrêt. Il ne doit pas y
avoir de hautes herbes, de mauvaises herbes, de
brosse, de feuilles, etc. dans l'échappement. Ces
matières peuvent enflammer et brûler en raison de
la chaleur du système d'échappement.
Schéma 4.10 — Emplacements des évents de
refroidissement
CHAUD
4.9
PRÉCAUTION APRÈS IMMERSION
Si le générateur a été immergé dans l'eau, il NE FAUT PAS le démarrer et
le faire fonctionner. Après toute immersion dans l'eau, un dépositaire doit
nettoyer, sécher et inspecter le générateur. Si la structure (ex. : maison) a
été inondée, il faut le faire inspecter par un électricien agréé afin de s'as-
surer qu'il n'y aura pas de problème électrique pendant le fonctionnement
du générateur ou lorsque le courant revient.
4.10 PROTECTION CONTRE LA
CORROSION
Laver et cirer régulièrement l'enveloppe à l'aide de produits de type auto-
mobile. Un lavage fréquent est recommandé dans les régions côtières/
où de l'eau de mer est présente. Vaporiser les tringleries avec une huile
légère telle que WD-40.
4.11 PROCÉDURE DE MISE HORS
SERVICE
4.11.1 MISE HORS SERVICE
Si le générateur ne peut pas subir un programme de test tous les sept
jours et s'il est hors service pendant plus de 90 jours, préparer le généra-
teur au stockage de la manière suivante :
1. Démarrer le générateur et le laisser chauffer.
2. Fermer la soupape d'arrêt dans le tuyau de conduite de combustible
et attendre que l'unité s'arrête.
3. Après l'arrêt de l'unité, régler sur la position OFF (Arrêt).
4. Régler le disjoncteur principal du générateur sur sa position OFF
(Arrêt) (ou OPEN (ouverte)).
5. Régler l'interrupteur AUTO/OFF/MANUAL (Auto/ arrêt/ manuel) sur la
position OFF (Arrêt) et mettre hors tension l'alimentation électrique
publique vers le commutateur de transfert. Retirer le fusible de 7,5 A
à partir du panneau de commande du générateur. Débrancher les
câbles de batterie comme indiqué dans la section « Dangers géné-
raux ».
6. Alors que le moteur est encore chaud, vider entièrement l'huile. Remplir
à nouveau le carter d'huile. Voir la section « Recommandations
d'huile de moteur ».
7. Apposer une étiquette sur le moteur indiquant la viscosité et la clas-
sification de l'huile présente dans le carter.
Maintenance

109
8. Retirer la (les) bougie(s) d'allumage et vaporiser un agent de fumi-
gation dans les orifices filetés de la (des) bougie(s) d'allumage.
Réinstaller et serrer la (les) bougie(s) d'allumage.
9. Retirer la batterie et la stocker dans une pièce fraîche et sèche sur
une planche en bois. Ne jamais stocker la batterie sur un sol en béton
ou en terre.
10. Nettoyer entièrement le générateur.
4.11.2 REMISE EN SERVICE
Afin de remettre l'unité en service après le stockage, procéder de la
manière suivante :
1. Vérifier si l'alimentation électrique publique est hors tension et si
l'interrupteur AUTO/OFF/MANUAL (Auto/ arrêt/ manuel) est réglé sur
la position OFF (Arrêt).
2. Vérifier l'étiquette apposée sur le moteur indiquant la viscosité et la
classification de l'huile. Vérifier si la bonne huile recommandée est
utilisée dans le moteur (voir la section Recommandations d'huile de
moteur). Si nécessaire, vider et remplir à nouveau d'huile propre.
3. Vérifier l'état de la batterie. Remplir tous les éléments des batteries
non scellées au bon niveau avec de l'eau distillée. NE PAS METTRE
D'EAU DU ROBINET DANS LA BATTERIE. Recharger la batterie
jusqu'à 100 pour cent d'état de charge ou, si elle est défectueuse,
la remplacer. Voir la section « Caractéristiques techniques » pour
connaître le type et la taille.
4. Nettoyer entièrement le générateur.
5. S'assurer que le fusible de 7,5 A est retiré du panneau de commande
du générateur. Rebrancher la batterie. Respecter la polarité de la
batterie. Des dommages peuvent se produire si la batterie n'est pas
branchée correctement.
6. Ouvrir la soupape d'arrêt.
7. Insérer le fusible de 7,5 A dans le panneau de commande du géné-
rateur. Démarrer l'unité en réglant l'interrupteur AUTO/OFF/MANUAL
(Auto/ arrêt/ manuel) sur la position MANUAL (Manuel). Laisser
l'unité chauffer complètement.
8. Arrêter l'unité en réglant l'interrupteur AUTO/OFF/MANUAL (Auto/
arrêt/ manuel) sur la position OFF (Arrêt).
9. Mettre SOUS TENSION l'alimentation électrique publique vers le
commutateur de transfert.
10. Régler l'interrupteur AUTO/OFF/MANUAL (Auto/ arrêt/ manuel) sur la
position AUTO.
11. Le générateur est désormais prêt à fonctionner.
REMARQUE :
Si la batterie est épuisée ou débranchée, il faut réinitialiser le pro-
gramme de test, la date et l'heure actuels.
4.11.3 ACCESSOIRES
Des accessoires améliorant la performance sont disponibles pour les
générateurs refroidis à l'air.
Les kits par temps froid• sont recommandés dans les zones où les
températures chutent régulièrement en dessous de 32 °F (0 °C).
Des kits de maintenance planifiée• incluent toutes les pièces néces-
saires pour effectuer la maintenance sur le générateur en fonction des
recommandations d'huile.
Le verrouillage du commutateur de transfert auxiliaire• permet à
tout commutateur de transfert de verrouiller complètement une grande
charge électrique en se fixant à son système de contrôle.
Un emballage d'embase de blindage de fascia • est standard sur
toutes les unités de 20 kW. Il est disponible pour toutes les autres
unités refroidis à l'air produites actuellement. Il se ferme pour offrir
une apparence lisse et façonnée ainsi qu'une protection contre les
rongeurs/ insectes.
Le système de surveillance à distance• est une boîte sans fil mon-
tée à l'intérieur qui indique l'état de marche du générateur et permet
d'effectuer un programme de test ainsi que fournir des rappels de
maintenance.
Les kits de retouche de peinture• sont très importants pour entretenir
l'apparence et l'intégrité de l'enveloppe du générateur. Ces kits incluent
une retouche de peinture ainsi que des instructions si nécessaire.
Pour plus d'informations sur les accessoires, veuillez contacter un dépo-
sitaire.
Maintenance

110
Maintenance
4.12 CALENDRIER D'ENTRETIEN
ATTENTION : Il est recommandé que toute tâche d'entretien
soit effectuée par le dépositaire le plus proche.
SYSTÈME/ COMPOSANT PROCÉDURE FRÉQUENCE
X = Action
R = Remplacer si nécessaire
* = Informer le dépositaire si la
réparation est nécessaire.
Inspecter Changer Nettoyer
H = Hebdomadaire
M = Mensuel
A = Annuel
COMBUSTIBLE
Conduites et raccordements de
combustible* XM
LUBRIFICATION
Niveau d'huile X M ou 24 heures de
fonctionnement continu.
Huile X 2 A ou 200 heures
de fonctionnement.**
Filtre à huile X 2 A ou 200 heures
de fonctionnement.**
REFROIDISSEMENT
Fentes de l'enveloppe X X H
BATTERIE
Éliminer la corrosion, s'assurer
qu'elle est sèche XXM
Nettoyer et serrer les bornes
de la batterie XXM
Vérifier l'état de charge X R TOUS LES 6 M
Niveau d'électrolyte X R TOUS LES 6 M
MOTEUR ET FIXATION
Filtre à air X R 2 A ou 200 heures
Bougie(s) d'allumage X R 2 A ou 200 heures
ÉTAT GÉNÉRAL
Vibration, bruit, fuite, température* X M
EFFECTUER UNE MISE AU POINT* À EFFECTUER PAR UN DÉPOSITAIRE 2 A ou 200 heures
* Contacter le dépositaire le plus proche pour obtenir de l'aide si nécessaire.
** Changer l'huile et le filtre après les huit (8) premières heures de fonctionnement et toutes les 200 heures par la suite, ou 2 ans, le premier
événement prévalant. Changer dès que possible lors du fonctionnement sous une charge lourde ou dans un environnement rempli de poussières
ou de saletés ou à des hautes températures ambiantes.

111
Dépannage
5.1 GUIDE DE DÉPANNAGE
Problème Cause Correction
Le moteur ne tournera pas. 1. Fusible sauté. 1. Corriger l'état du court-circuit, remplacer le
fusible de 7,5 A dans le panneau de commande
du générateur.
2. Câbles de batterie desserrés, rouillés 2. Serrer, nettoyer ou remplacer si nécessaire.
ou défectueux.
3. Contacteur du démarreur défectueux. (8 kW) 3. *
4. Contacteur du moteur défectueux. 4. *
5. Batterie épuisée. 5. Charger ou remplacer la batterie.
Le moteur tourne mais 1. Plus de carburant. 1. Remettre du carburant/ Mettre sous tension la
ne démarrera pas. vanne de combustible.
2. Soupape de carburant défectueuse. 2. *
3. Ouvrir le fil n° 14 à partir du 3. *
tableau de contrôle du moteur.
4. Bougie(s) d'allumage encrassée(s) 4. Nettoyer, écarter à nouveau ou remplacer la (les)
bougie(s).
5. Jeu des soupapes en dehors du réglage. 5. Corriger le réglage du jeu des soupapes.
6. Étrangleur qui ne fonctionne pas. 6. Vérifier si la plaque de l'étrangleur bouge librement.
Le moteur démarre brusquement 1. Filtre à air bouché 1. Vérifier, remplacer le filtre à air.
et connaît des défaillances. ou endommagé.
2. Bougie(s) d'allumage encrassée(s) 2. Nettoyer, écarter à nouveau ou remplacer la (les)
bougie(s).
3. Pression de carburant incorrecte. 3. Vérifier si la pression de carburant vers le
régulateur est d'une colonne d'eau de 10-12 po.
(0,36-0,43 livres par pouce carré) pour le PL, et
d'une colonne d'eau de 5-7 po. (0,18-0,25 livres
par pouce carré) pour le gaz naturel.
4. Sélecteur de carburant dans la mauvaise position. 4. Mettre le sélecteur dans la bonne position.
5. L'étrangleur reste fermé. 5. Vérifier si la plaque de l'étrangleur bouge librement.
L'interrupteur AUTO/OFF/MANUAL 1. Interrupteur défectueux. 1. *
(Auto/ arrêt/ manuel) est réglé sur la 2. Interrupteur AUTO/OFF/MANUAL (Auto/ arrêt/ 2. *
position OFF (Arrêt) mais le moteur manuel) mal câblé.
continue de fonctionner. 3. Tableau de contrôle défectueux. 3. *
Il n'y a aucune sortie CA 1. Le disjoncteur principal du réseau public est sur 1. Corriger le réglage du disjoncteur
à partir du générateur. la position OFF (Arrêt) (ou OPEN (Ouverte)). sur la position ON (Marche) (ou CLOSED (Fermée)).
2. Défaillance interne du générateur. 2. *
Il n'y a aucun transfert vers 1. Bobine du commutateur de transfert défectueuse. 1. *
le secours après le réseau public. 2. Relais de transfert défectueux. 2. *
coupure de la source d'alimentation. 3. Circuit du transfert de relais ouvert. 3. *
4. Tableau de contrôle logique défectueux. 4. *
L'unité consomme de grandes 1. Moteur trop rempli d'huile. 1. Régler l'huile au bon niveau.
quantités d'huile. 2. Type ou viscosité inapproprié(e) d'huile. 2. Voir la section « Recommandations d'huile
de moteur ».
3. Joint ou tuyau endommagé. 3. Vérifier s'il y a des fuites d'huile.
4. Reniflard du moteur défectueux. 4. *

112
6.1 NAVIGATION DANS LE MENU
DU SYSTÈME
Pour aller au MENU, appuyer sur la touche « Esc » (Échap) à partir
de n'importe quelle page. Il peut être nécessaire d'appuyer plusieurs
fois sur la touche avant d'atteindre la page de menu. Le menu sélec-
tionné actuellement s'affiche comme un mot clignotant. Naviguer
vers le menu concerné à l'aide des touches +/-. Lorsque le menu
concerné clignote, appuyer sur la touche ENTER (Entrée). Selon le
menu sélectionné, il peut y avoir une liste de choix présentée. Utiliser
la même méthode de navigation pour sélectionner l'écran souhaité
(se reporter au diagramme Menu du système).
6.1.1
MODIFICATION DES PARAMÈTRES (MENU EDIT (MODIFIER))
Afin de modifier un paramètre tel que le contraste d'affichage, aller
au menu EDIT (Modifier) et utiliser les touches +/- pour naviguer
vers le paramètre à modifier. Une fois que ce paramètre s'affiche
(ex. : contraste), appuyer sur la touche ENTER (Entrée) pour
entrer dans le mode EDIT (modifier). Utiliser les touches +/- pour
modifier le paramètre, appuyer sur la touche ENTER (Entrée) pour
stocker le nouveau paramètre.
REMARQUE :
Si on n'appuie pas sur la touche ENTER (Entrée) pour enregistrer le
nouveau paramètre, il sera seulement enregistré temporairement. La
prochaine fois que la batterie est débranchée, le paramètre reviendra
au paramètre précédent.
Annexe

113
Annexe
Menu principal
Journal de
fonctionnement
Journal d’alarmes
Historique État
CommandeÉtat VersionsÉcran
Fréquence
du générateur
Heures d’utilisation
du moteur
Régime
moteur
Tension de
la batterie
Déboguer
Entrées Sorties Écran
Modifier
Contraste
Langue
Heure/date
Vitesse
en exercice
Échap Appuyez sur la touche « Échap »
pour revenir en arrière à travers
les niveaux du menu.
+ / - Utilisez la touche « + / - »
pour naviguer dans le menu.
ENTRÉE
Utilisez la touche ENTRÉE pour
sélectionner des éléments
ou entrer des données.
Échap
Échap
Échap
Échap
Échap Échap
Entrez le mot de passe
sur cette page
Réinitialiser
la maintenance
Test QT

114
POUR LES GÉNÉRATEURS DE 10 KW ET MOINS
ÉNONCÉ DE LA GARANTIE FÉDÉRALE DU CONTRÔLE DES ÉMISSIONS
VOS DROITS ET OBLIGATIONS DE GARANTIE
L'Agence pour la Protection de l'Environnement américaine (ci-après dénommée EPA) et la société Generac Power Systems, Inc.
(ci-après dénommée Generac) sont heureux de vous expliquer ce qu'est la garantie de votre nouvel équipement 2008 et ultérieur.
Le nouvel équipement utilise des petits moteurs à allumage commandé doivent être conçus, construits et équipés dans le respect
des normes nationales rigoureuses en matière de pollution pour le gouvernement fédéral. Generac garantira le système de contrôle
des émissions de votre générateur pour les périodes indiquées ci-après, en l'absence d'acte abusif, de négligence, de modification
non approuvée ou de maintenance inadaptée de votre équipement.
Votre système de contrôle des émissions pourra comprendre certaines pièces telles que : le carburateur, le système d'allumage, le
système de carburant, le pot catalytique et les autres composants relatifs aux émissions (le cas échéant).
COUVERTURE DE GARANTIE DU FABRICANT :
Ce système de contrôle des émissions est garanti pendant une durée de deux ans. Si un composant ou système de votre
équipement relatif aux émissions comporte une pièce défectueuse ou présente un défaut de fabrication pendant la durée de la
garantie, les réparations ou remplacements de pièces seront effectués par un dépositaire d'entretien de garantie agréé par Generac.
RESPONSABILITÉS DE GARANTIE DU PROPRIÉTAIRE :
En tant que propriétaire du générateur, vous êtes responsable de la réalisation de toute la maintenance nécessaire telle que listée
dans le manuel d'entretien qui vous a été remis par l'usine. Aux fins de la garantie, Generac vous recommande de conserver tous
les reçus relatifs à la maintenance effectuée sur votre générateur, mais Generac ne peut pas refuser la garantie uniquement en
raison de la non-présentation des reçus.
En tant que propriétaire du générateur, vous devez cependant savoir que Generac pourra refuser tout et / ou partie de la
couverture de la garantie ou de la responsabilité si votre générateur et / ou toute pièce de celui-ci ne fonctionne plus du fait d'un
usage abusif, d'une négligence, d'une mauvaise maintenance ou de modifications non approuvées, ou de l'utilisation de pièces
contrefaites et / ou provenant de l'économie souterraine n'ayant pas été fabriquées, fournies ou approuvées par Generac.
Vous êtes chargé de contacter un dépositaire de garantie agréé par Generac dès qu'un problème se présente. Les
réparations effectuées dans le cadre de la garantie devront être faites dans une période raisonnable, inférieure à 30 jours.
Le service de garantie peut être organisé en contactant votre dépositaire ou un dépositaire de service de garantie agréé par
Generac. Pour connaître le dépositaire de service de garantie agréé par Generac situé le plus près, appeler notre numéro gratuit :
1-800-333-1322
REMARQUE IMPORTANTE : Cet énoncé de garantie explique vos droits et obligations dans le cadre de la garantie du Système
de Contrôle des Émissions (garantie du SCE) qui vous est fournie par Generac conformément au droit de l'État fédéral. Consulter
également les « Garanties limitées de Generac pour Generac Power Systems, Inc. » jointes au présent document sur un feuillet
séparé, qui vous est également remis par Generac. Veuillez noter que la présente garantie ne s'applique pas aux dommages
accessoires, importants ou indirects causés par des défaillances matérielles ou de fabrication, ou par tout retard de réparation ou de
remplacement de la ou des pièce(s) défectueuses. La présente garantie remplace toutes les autres garanties, implicites ou explicites.
En particulier, Generac n'émet aucune garantie de conformité ou d'usage pour un objectif particulier. Certains états ne permettent pas
de poser une limite à la durée de la garantie implicite, la limite susmentionnée ne s'applique donc pas à ces derniers.
La garantie du SCE ne s'applique qu'au système de contrôle des émissions de votre nouvel équipement. En cas de conflit au
niveau des termes de la présente garantie du SCE et de la garantie Generac, la garantie de Generac prévaudra. Les garanties du
SCE et de Generac décrivent les droits et obligations importantes relatives à votre nouvel équipement.
Le service de garantie ne peut être réalisé que par une entreprise de service agréée par Generac. En cas de demande du service
de garantie, des preuves mentionnant la date de vente à l'acquéreur / au propriétaire d'origine doivent être présentées.
Pour toute question concernant vos droits et responsabilités de garantie, merci de contacter Generac à l'adresse suivante :
ATTENTION WARRANTY DEPARTMENT
GENERAC POWER SYSTEMS, INC.
P.O. BOX 297 • WHITEWATER, WI 53190
1ère partie
Référence 0H1911 Rév. A 01/09
Garantie

115
GARANTIE DU SYSTÈME DE CONTRÔLE DES ÉMISSIONS
Garantie du Système de Contrôle des Émissions (garantie du SCE) pour l'équipement utilisant de petits moteurs à allumage commandé :
(a) Applicabilité : La présente garantie s'applique à l'équipement qui utilise de petits moteurs hors route. La période de la garantie
du SCE commencera à la date d'achat / de livraison du nouvel équipement à son acquéreur / propriétaire d'origine, final, et
durera pendant les 24 mois suivant ladite date.
(b) Couverture de la garantie générale des émissions : Generac garantit à l'acquéreur / au propriétaire d'origine, final, du nouveau
moteur ou équipement et à chacun des acquéreurs / propriétaires suivant que lorsqu'il est installé le SCE :
(1) Est conçu, construit et équipé dans le respect de toutes les réglementations applicables ; et
(2) Ne comporte aucune pièce défectueuse ni ne présente aucun défaut de fabrication à tout moment de la période de
garantie du SCE.
(c) La garantie sur les pièces relatives aux émissions sera interprétée de la façon suivante :
(1) Toute pièce garantie, dont le remplacement n'est pas prévu au cours des maintenances obligatoires mentionnées dans
le Manuel d'entretien sera garantie pour toute la durée de la Garantie du SCE. Si l'une de ces pièces devient défectueuse
pendant la durée de la Garantie du SCE, elle sera réparée ou remplacée par Generac conformément au paragraphe (4)
qui suit. Ces pièces réparées ou remplacées dans le cadre de la Garantie du SCE seront garanties pour le reste de la
durée de la Garantie du SCE.
(2) Toute pièce garantie dont il est prévu une inspection régulière dans le Manuel d'entretien sera garantie pendant toute la
durée de la Garantie du SCE. Toute déclaration contenue dans le Manuel d'entretien et relative à l'effet de « réparation ou
remplacement si nécessaire » ne réduira pas la durée de la Garantie du SCE. Ces pièces réparées ou remplacées dans le
cadre de la Garantie du SCE seront garanties pour le reste de la durée de la Garantie du SCE.
(3) Toute pièce garantie, dont le remplacement est pas prévu au cours des maintenances obligatoires mentionnées dans le
Manuel d'entretien sera garantie pour la période précédant la date du premier remplacement prévu. Si la pièce devient
défectueuse avant le premier remplacement prévu, elle sera réparée ou remplacée par Generac, conformément au
paragraphe (4) qui suit. Ces pièces relatives aux émissions réparées ou remplacées dans le cadre de la Garantie du SCE
seront garanties pour le reste de la durée précédant la date de leur premier remplacement prévu.
(4) La réparation ou le remplacement de toute pièce relative aux émissions et garantie dans le cadre de la Garantie du SCE
sera réalisé sans frais pour le propriétaire dans un service de garantie agréé par Generac.
(5) Nonobstant les dispositions de la sous-section (4) ci-dessus, les services ou réparations sous garantie doivent être
effectués aux centres d'entretien agréés Generac.
(6) Si le moteur est inspecté par un service de garantie agréé par Generac, les frais de diagnostic ne seront pas à la charge
de l'acquéreur / du propriétaire si la réparation entre dans le cadre de la garantie.
(7) Generac est tenu, pendant la durée de la Garantie du SCE, de conserver un stock de pièces relatives aux émissions et
garanties suffisant afin de répondre à la demande desdites pièces.
(8) Toute pièce de rechange relative aux émissions agréée et approuvée par Generac pourra être utilisée pour la réalisation
de toute maintenance ou réparation effectuée dans le cadre de la garantie du SCE et sera fournie sans frais à la charge de
l'acquéreur / du propriétaire. Cette utilisation ne réduira pas les obligations de Generac dans le cadre de la Garantie du SCE.
(9) Toute pièce non approuvée, ajoutée, modifiée, contrefaite et / provenant de l'économie souterraine ne pourra pas être
utilisée afin de modifier ou de réparer un moteur Generac. L'utilisation de telles pièces annule la Garantie du SCE
et constituera un motif suffisant pour rejeter toute demande de bénéfice de la Garantie du SCE. Generac ne sera
pas responsable des défaillances des pièces garanties d'un équipement Generac dues à l'utilisation de pièces non
approuvées, ajoutées, modifiées contrefaites et / ou provenant de l'économie souterraine.
LES PIÈCES RELATIVES AUX ÉMISSIONS PEUVENT INCLURE CE QUI SUIT
(LE CAS ÉCHÉANT) :
1) SYSTÈME DE DOSAGE DU CARBURANT
A. CARBURATEUR ET PIÈCES INTERNES
B. RÉGULATEUR DE PRESSION
2) SYSTÈME D'INDUCTION D'AIR
A. COLLECTEUR D'ADMISSION
B. FILTRE À AIR
3) SYSTÈME D'ALLUMAGE
A. BOUGIES D'ALLUMAGE
B. BOBINES / MODULE D'ALLUMAGE
4) SYSTÈME D'INJECTION D'AIR
A. VANNE À IMPULSION D'AIR
5) SYSTÈME D'ÉCHAPPEMENT
A. CATALYSEUR
B. RÉACTEUR THERMIQUE
C. COLLECTEUR D'ÉCHAPPEMENT
2ème partie
Référence 0H1911 Rév. A 01/09
Garantie

116
Garantie
POUR LES GÉNÉRATEURS DE 13 KW ET PLUS
Énoncé de garantie de l'Agence américaine pour la Protection de l'Environnement
Droits, obligations et couverture de garantie
L'Agence pour la Protection de l'Environnement américaine (ci-après dénommée EPA) et la société Generac Power Systems,
Inc. (ci-après dénommée Generac) sont heureux de vous expliquer la garantie du système de contrôle des émissions de votre
nouveau moteur stationnaire d'urgence. Si au cours de la période de garantie, tout système de contrôle des émissions ou d'un
composant de votre moteur est jugé défectueux en matériaux ou de fabrication, Generac réparera votre moteur sans aucun
frais pour vous pour le diagnostic, les pièces de rechange et le travail à condition qu'il soit effectué par une facilité de garantie
agréé par Generac Service. Votre système de contrôle des émissions peut inclure des pièces telles que le dosage du carburant,
l'allumage et les systèmes d'échappement et d'autres composants d'émission connexes énumérés ci-dessous. Generac garantira
le système de contrôle des émissions de vos moteurs de 2009 et plus récents en l'absence d'acte abusif, de négligence, de
modification non approuvée ou de maintenance inadaptée de votre moteur. Pour les moteurs à moins de 130 HP, la période de
garantie est de deux ans à compter de la date de vente à l'acheteur final. Pour les moteurs ≤ à 130 CV, la période de garantie est
de trois ans à compter de la date de mise en service du moteur.
Responsabilités de garantie de l'acquéreur/du propriétaire
En qualité d'acquéreur/propriétaire du moteur, vous êtes responsable des éléments suivants : 1.) Le moteur doit être installé et
configuré conformément aux spécifications d'installation de Generac. 2.) Les exigences d'entretien figurant dans votre manuel
d'entretien doivent être respectées. 3.) Tout ajustement d'un réglage du moteur doit être fait conformément et en accord avec les
instructions dans le manuel d'entretien. 4.) Tout système ou composant de contrôle des émissions doit être entretenu et exploité
de manière appropriée afin d'assurer le bon fonctionnement du moteur et une réduction des émissions par le système de contrôle
à tout moment.
Generac pourra refuser tout et / ou partie de la couverture de la garantie ou de la responsabilité du système de contrôle des
émissions de votre moteur, ou d'un système de contrôle des émissions ou d'un composant de votre moteur s'il ne fonctionne plus
du fait d'un usage abusif, d'une négligence, d'une mauvaise maintenance ou de modifications non approuvées, ou de l'utilisation
de pièces contrefaites et / ou provenant de l'économie souterraine n'ayant pas été fabriquées, fournies ou approuvées par
Generac. Une session de service de garantie / maintenance planifiée peut être organisée en contactant votre concessionnaire ou
un service de garantie agréé par Generac, 888-GENERAC (888-436-3722) ou www.gênera.com pour connaître le concessionnaire
le plus proche. L'acquéreur / le propriétaire est responsable des dépenses ou autres frais engagés pour des appels de service
et / ou le transport du produit vers / depuis les sites d'inspection ou de réparation. L'acheteur / le propriétaire est responsable
d'une partie ou de tous les dommages ou pertes subis pendant le transport / l'expédition du moteur à des fins d'inspection ou
de réparation sous garantie. Contactez Generac Power Systems Inc. pour des informations supplémentaires sur la garantie du
système de contrôle des émissions, Generac Power Systems, Inc. B.P.: 8, Waukesha, WI 53187, Tél : 888-GENERAC (888-436-3722)
ou www.gênera.com.
Les pièces relatives aux émissions incluent les éléments suivants (si équipé)
1) Système de dosage du carburant 3) Système d'allumage avec
1.1) Carburateur d'essence et composants internes a) Fil de bougie, b) Module d'allumage,
a) Filtre à carburant, b) Carburateur, c) Pompe à carburant c) Bougie d'allumage, d) Câbles de bougie
1.2) Assemblage de carburation et ses composantes 4) Système d'échappement
a) Contrôleur d'alimentation en essence, a) Montage de catalyseur, b) Collecteur d'échappement,
b) Carburateur et joints, c) Mélangeur et ses joints, c) Pot d'échappement, d) Tuyau d'échappement,
d) Régulateur de gaz principal, e) Vaporisateur de liquide e) Joint du pot d'échappement
1.3) Régulateur de carburant 5) Reniflard, dont :
2) Système d'induction d'air, dont : a) Tube de raccordement au reniflard, b) Vanne PCV
a) Pipe / collecteur d'admission, b) Filtre à air 6) Sonde d'oxygène
7) Système de contrôle d'émission ou de diagnostic
1ère partie
Référence 0H1916 Rév A

117
Garantie
Exigences de conformité à l'Agence américaine pour la Protection de l'Environnement
Responsabilités d'archivage de l'acquéreur/du propriétaire
L'Agence américaine pour la Protection de l'Environnement et Generac Power Systems, Inc (Generac), sont heureux d'expliquer
vos exigences d'archivage pour une conformité avec la section JJJJ – Normes de performance des moteurs à combustion
interne stationnaires avec allumage par bougie dont la liste figure dans le « Electronic Code of Federal Regulations » (code
électronique des règlements fédéraux), titre 40, partie 60. En qualité d'acquéreur / propriétaire qui exploite et entretient le moteur
stationnaire d'urgence certifié et le système de contrôle des émissions conformément aux directives applicables aux émissions,
comme spécifié dans ce Manuel d'entretien, vous êtes tenu de respecter les exigences de notification et d'archivage suivantes
pour démontrer votre conformité. 1.) Conserver les documents montrant que le moteur est certifié conformément aux normes
d'émission. 2.) Conserver les documents relatifs à l'entretien effectué. 3.) Conserver des documents sur la disposition autorisant
les moteurs au gaz naturel à fonctionner en utilisant du propane pour un maximum de 100 heures par an en tant que carburant de
remplacement uniquement pendant les opérations d'urgence, à condition que le moteur ne soit pas certifié pour fonctionner au
propane. 4.) Respecter toutes les notifications de conformité présenté à l'acquéreur / propriétaire et conserver tous les documents
justificatifs. 5.) Conserver des documents sur les heures de fonctionnement, y compris ce qui permet de traiter le fonctionnement
de fonctionnement d'urgence et le nombre d'heures consacrées au fonctionnement dans les conditions normales. Pour les
moteurs d'urgence ≤ à 130 HP, l'archivage des heures de fonctionnement commence le 1er janvier 2011. Pour les moteurs
d'urgence de moins de 130 HP, l'archivage des heures de fonctionnement commence le 1er janvier, 2009. Les moteurs sont
équipés d'un compteur horaire sans réenclenchement pour faciliter l'archivage.
Les diverses régions chargées de la gestion spécifique de la qualité d'air et de contrôle de la pollution atmosphérique peuvent
avoir des exigences d'archivage / notification différentes et additionnelles. Votre autorisation de fabriquer et / ou de faire fonctionner
le moteur peut être subordonnée au respect de ces exigences. Contacter votre agence locale de gestion spécifique de la qualité
d'air et de contrôle de la pollution atmosphérique pour connaître les exigences spécifiques.
Les moteurs stationnaires d'urgence à combustion interne (MCI) peuvent être utilisés aux fins de vérifications d'entretien et
d'essais de préparation, à condition que les tests soient recommandés par le gouvernement fédéral, d'État ou local, Generac, ou
la compagnie d'assurance associée au moteur. Les vérifications d'entretien et les essais de préparation de ces unités sont limités
à 100 heures par an. Aucune limite de temps n'est fixée sur l'utilisation des MCI stationnaires dans des situations d'urgence.
L'acquéreur / le propriétaire peut demander une approbation d'heures supplémentaires devant être utilisées pour les vérifications
d'entretien et les essais de préparation à l'Administrateur, mais une pétition n'est pas nécessaire si le propriétaire détient des
documents indiquant que les normes fédérales, étatiques ou locales exigent une durée d'entretien et de préparation des MCI
d'urgence allant au-delà de 100 heures par an. Les MCI stationnaires d'urgence peuvent fonctionner jusqu'à 50 heures par an dans
des situations de non-urgence, mais ces 50 heures sont comptées dans les 100 heures par an réservées à l'entretien et aux tests.
Les 50 heures par an réservées aux situations non urgentes ne peuvent pas être utilisées pour l'écrêtement des pointes ou pour
générer des revenus pour une installation afin d'alimenter un réseau électrique ou toute autre source d'alimentation dans le cadre
d'un arrangement financier avec une autre entité. Pour l'acquéreur ou le propriétaire de moteurs d'urgence, toute opération autre
que l'opération d'urgence, l'entretien, le test d'essai et le fonctionnement en situations non-urgentes pour 50 heures par an, comme
autorisé en vertu du présent article, est interdite.
Si vous utilisez et entretenez votre moteur d'urgence stationnaire à combustion interne SI et vos système de contrôle d'émissions
certifiés conformément aux spécifications et directives de ce Manuel d'entretien, l'Agence pour la Protection de l'Environnement
(EPA) n'exige pas des tests de performance du moteur. Sinon, votre moteur sera considéré comme non-certifié et vous devez
démontrer votre conformité à la section JJJJ – Normes de performance des moteurs à combustion interne stationnaires avec
allumage par bougie dont la liste figure dans le « Electronic Code of Federal Regulations » (code électronique des règlements
fédéraux), titre 40, partie 60.
Instructions d'installation relatives à l'émission
Votre moteur stationnaire d'urgence certifié dispose de systèmes ou composants de contrôle des émissions pré-configurés qui
ne nécessitent aucun ajustement. L'inspection ou le remplacement d'une composante d'émission doit être effectué conformément
aux exigences citées dans l'énoncé de garantie de l'Agence américaine pour la protection de l'environnement ou peut se faire en
contactant votre concessionnaire, un service de garantie agréé par Generac, 888-GENERAC (888-436-3722) ou www.gênera.com
pour connaître le concessionnaire le plus proche. Le non-respect de ces instructions lors de l'installation d'un moteur certifié dans
une pièce d'équipement hors route viole le droit fédéral 40 CFR 1068.105 (b), et est passible d'amendes ou de sanctions décrites
dans la Loi sur l'assainissement de l'air.
2ème partie
Référence 0H1916 Rév A

Parte No. 0H8358 Revisión F (10/05/11) Impreso en los EE.UU.
