Pvi Industries Pv500 45U Users Manual 45U_1GNR
PV500-45U to the manual 3d0afa16-da4c-4a51-aa69-90930d9bd802
2015-02-06
: Pvi-Industries Pvi-Industries-Pv500-45U-Users-Manual-521331 pvi-industries-pv500-45u-users-manual-521331 pvi-industries pdf
Open the PDF directly: View PDF .
Page Count: 42

1 PV500-45U 06/12
INSTALLATION & MAINTENANCE MANUAL
TRICON WATER HEATER
MODELS (40, 50, 75, 90, 100) L 125 A-PVIF
MODELS (50, 75, 90, 100) L (250, 300) A-PVIF
Installation and service must be performed by a qualified service installer, service agency or the gas supplier.
IMPORTANT: THIS MANUAL CONTAINS INFORMATION REQUIRED FOR INSTALLATION, OPERATION AND
MAINTENANCE OF THIS EQUIPMENT. READ AND FOLLOW THE INFORMATION IN THIS MANUAL AND ALL OTHER
PROVIDED INSTRUCTIONS, LABELS AND MARKINGS BEFORE INSTALLING, OPERATING OR SERVICING THIS UNIT.
TO THE INSTALLER: After installation, these instructions must be given to the equipment user or left near the appliance.
SPECIAL INSTRUCTIONS TO THE OWNER: Retain this manual for future reference. These instructions contain
important information that will help you in maintaining and operating this appliance.
PVI INDUSTRIES, LLC - Fort Worth, Texas 76111 - Web www.pvi.com - Phone 1-800-433-5654
2 PV500-45U 06/12
TABLE OF CONTENTS
1. Safety Considerations
2. Standard Features and Equipment
2.1 Performance
2.2 Pressure Vessel
2.3 Heat Exchanger
2.4 Code and Standards
2.5 Burner, Operating Controls & Safeties
2.6 Warranty and Service Policy (see warranty and service policy for details)
2.7 Miscellaneous
3. Product Descriptions
4. Water Heater Installation
4.1 Checking Equipment Before You Install
4.2 Codes
4.3 Electrical Requirements
4.4 Handling and Location
4.5 Service Clearances
4.6 Clearances to Combustible Surfaces
5. General Piping Guidelines
5.1 Inlet and Outlet Connections
5.2 Building Return Piping
6. Condensate Drain, Trap & Disposal
6.1 Condensate Neutralization System (optional)
7. Gas Supply and Piping
7.1 Gas Train and controls Certification
7.2 Gas Control Trains
7.3 Inlet Pressure
7.4 Manifold Pressure
7.5 Gas Piping Size
7.6 Appliance Isolation during Gas Supply Piping Pressure Test
7.7 Gas Connection
8. Combustion and Ventilation Air
8.1 Equipment Located in Confined Spaces
8.2 Maximum Allowed Remote Combustion Air Inlet Length
8.3 Remote Combustion Air Cap
8.4 Vertical or Horizontal Remote Air Duct Termination
8.5 Remote Air Consideration for Combined Remote Air Ducting
9. Venting
9.1 Venting The TriCon
9.2 Maximum Category IV Vent Length
9.3 Vertical or Horizontal Vent Termination
9.4 Combining Category IV Vents
3 PV500-45U 06/12
10. Operating and Safety Controls
10.1 Temperature and Pressure Relief Valve(s)
10.2 Operating Temperature Control
10.3 High Water Temperature Limit Control
10.4 Cathodic Protection
10.5 Electronic Low Water Cut-off (optional)
11. TEMPTRAC Electronic Controller Panel
11.1 Principal of Operation
11.2 Upper LED Readout
11.3 Lower LED Readout
11.4 Control Buttons
11.5 To View the Setpoint
11.6 To Change the Setpoint
11.7 To Change Other Parameters
11.8 LED Display Alarm Messages
12. Remote Connections – Terminal Strip
12.1 Making BMS/BAS Remote Connection for Analog and Binary Signals
12.3 Terminal Functions
13. Sequence of Operation
14. Initial Startup
14.1 Initial Startup Requirements
14.2 Tools and Instrumentation Required
14.3 Resources
14.4 On Site Considerations
14.5 Startup Procedure
15. Troubleshooting Guide
16. Replacement Parts
16.1 Control Panel
16.2 Control Panel Components
16.3 Burner Assembly
16.4 Burner Assembly Components
17. Periodic Maintenance
18. Recommended Maintenance Schedule
Warranty forms ship separately with each product.

4 PV500-45U 06/12
1 SAFETY CONSIDERATIONS
WARNING: If the information in the supplied manual(s) is not followed exactly, a fire, explosion or exposure to
hazardous materials may result, causing property damage, personal injury or loss of life.
FOR YOUR SAFETY
Do not store or use gasoline or other flammable vapors or liquids in the vicinity of this or any other appliance.
WHAT TO DO IF YOU SMELL GAS
Do not try to light any appliance.
Do not touch any electric switch; do not use any phone in your building.
Immediately call your gas supplier from a location away from your building and the smell of gas. Follow the gas
supplier's instructions.
If you cannot reach your gas supplier, call the fire department.
Installation and service must be performed by a qualified installer, service agency or the gas supplier.
This product contains, or may come to contain materials that have been identified as carcinogenic, or possibly carcinogenic
to humans. Before installing, servicing or removing this product, read and follow the supplied instructions
WARNING: Installation and service must be performed by a qualified installer, service agency or the gas supplier,
who must read and follow the supplied instructions before installing, servicing or removing this appliance. Refer to
the information contained in this manual. Improper installation, adjustment, alteration, service or maintenance can
cause property damage, personal injury, exposure to hazardous materials or loss of life.
WARNING: Do not use this appliance if any part has been under water. Immediately call a qualified service
technician to inspect the unit and to replace any part of the control system, all gas controls and all other items
affecting safe appliance operation and which has been under water.
WARNING: In an emergency shut the main gas supply valve to the appliance from a location safely away from the
emergency. Failure to follow these instructions can cause property damage, personal injury, and exposure to
hazardous materials or loss of life.
PRODUCT SAFETY INFORMATION
REFRACTORY CERAMIC FIBER PRODUCT WITH CRYSTALLINE SILICA
WARNING: This product contains or may come to contain crystalline silica, which has been identified by the
International Agency for Research on Cancer (IARC) as carcinogenic to humans. This product also contains
refractory ceramic fibers, which have been identified by the IARC as possibly carcinogenic to humans. Avoid
breathing fiber particulates and dust.
RISKS:
Air borne fibrous insulation is a possible cancer hazard by inhalation.
Airborne crystalline silica may cause silicosis (lung disease) by inhalation.
May cause temporary irritation to eyes, skin, and respiratory tract.
PRECAUTIONARY MEASURES:
Minimize airborne fibers with engineering controls.
Use NIOSH/MSHA approved respirators as required (see MSDS).
Wear long sleeved, loose-fitting clothing, eye protection and gloves.
FIRST AID MEASURES: (If any of the irritations listed persists, seek medical attention)
Eyes: Flush with water.
Skin: Wash with soap and warm water.
Ingestion: Do not induce vomiting. Get medical attention if gastrointestinal symptoms develop.
Inhalation: Remove to fresh clean air.
WARNING: If you are unfamiliar with the safe handling of refractory ceramic fiber products, or if you wish additional
information prior to beginning any disassembly of the water heater or boiler that might expose refractory ceramic
fiber materials, contact: Unifrax Corporation, 2351 Whirlpool Street, Niagara Falls, NY 14305-2413, 1-800-322-2293.
IDENTIFICATION OF REFRACTORY CERAMIC FIBER MATERIALS (RCF):
The burner, lower tank and upper and lower flue collector assemblies utilize RCF material. (The RFC materials are located
within the product and not generally exposed except during service, disassembly or assembly.)

5 PV500-45U 06/12
IMPORTANT SAFETY NOTE
It takes only 5 seconds of skin contact with 140°F water to cause a
second degree burn! You must protect against high water temperatures at all
lavatories, tubs, showers and other points of hot water contact.
Accidental scalding from high water temperatures is a greater
risk in some types of installations. Some examples are:
HOMES FOR THE MENTALLY HANDICAPPED
HOMES FOR THE PHYSICALLY HANDICAPPED
HOSPITALS AND NURSING HOMES
ELDER CARE FACILITIES AND REST HOMES
ORPHANAGES AND CHILD CARE FACILITIES
OTHER INSTALLATIONS - WHERE RESPONSE TO CONTACT WITH HOT
WATER MAY BE SLOWER OR WHERE THE DANGER OF HOT WATER
CONTACT IS GREATER
Thermostatically controlled mixing valves must be used in the
design of the potable hot water system.
Potable hot water should be tempered to no more than
110°F when used for bathing or other personal uses.
Good engineering practice mandates the use of thermostatically controlled
mixing valves set at 120°F or less to keep the delivered water temperature
below scalding temperatures.
6 PV500-45U 06/12
2 STANDARD FEATURES AND EQUIPMENT
2.1 Performance
90% thermal efficiency at full fire from 40° to 140°F
Up to 96% thermal efficiency with modulation
< 20 ppm NOx (399 to 900 MBH)
Ducts direct combustion air up to 100 equivalent feet through 6-inch diameter material (requires UL
approved vent cap, see optional equipment list)
Vents up to 100 equivalent feet through 6-inch diameter material
2.2 Pressure Vessel
AquaPLEX tank (unlined duplex alloy)
Storage tank ASME stamped and National Board registered for 150 psi MAWP
Nonferrous, removable fittings at all tank connections
Hand hole cleanout
Fiberglass insulation
Steel jacket panels with industrial-grade finish
Drain valve
2.3 Heat Exchanger
Three-pass, fire tube design
AquaPLEX fire tubes
2.4 Codes and Standards
Intertek / ETL listed to US and Canadian safety standards
Intertek / ETL listed for use with stainless steel Category IV vent material
Intertek / ETL certified as low-lead compliant
FM compliant
ASHRAE 90.1 compliant
2.5 Burner, Operating Controls & Safeties
Pre-mix surface burner with self-adjusting, proportionate gas/air ratio
UL 795 compliant gas train
Electronic flame safeguard with pre- and post-purge
Combustion sequence panel lights including lockout
Programmable electronic operating control with digital temperature readouts,
adjustable from 70°F to 180°F
Immersion temperature limiting device (high limit control)
ASME-rated temperature and pressure relief valve
NEMA-1 control enclosure
Terminals for remote on-off
Flame failure audible alarm and indicating light with remote contacts
Seamless VFD modulation with 7-to-1 turndown
2.6 Warranty and Service Policy (see warranty or service policy for details)
10-Year tank warranty (PV 627)
3-Year scale failure warranty (PV 563)
First-year cost-free service policy (PV 551)
10-Year chloride-induced stress corrosion cracking warranty (PV 8083)
2.7 Miscellaneous
Factory authorized startup
Vent termination cap, 6-inch diameter (larger cap optional)
Factory-equipped for connection to direct inlet air (requires UL listed vent termination cap, see options list)
Condensate “P” trap (provided for field installation)

7 PV500-45U 06/12
3 PRODUCT DESCRIPTION Component, Controls and Connection Locations
(Locations May Vary)
125 SERIES

8 PV500-45U 06/12
250 SERIES

9 PV500-45U 06/12
300 SERIES
10 PV500-45U 06/12
4 WATER HEATER INSTALLATION
4.1 Checking Equipment Before You Install
Inspect the unit completely upon receipt from the freight carrier before signing the bill of lading. Inspect the appliance
and all accompanying parts for signs of impact or mishandling. Verify the total number of pieces shown on packing
slips with those actually received. Contact the freight carrier immediately if any damage or shortage is detected.
4.2 Codes
The equipment must be installed in accordance with those installation regulations in force in the local area where the
installation is to be made. Authorities having jurisdiction must be consulted before installation is made. In the
absence of such requirements, the installation shall be in accordance with the instructions in this manual, appliance
markings and supplemental instructions and in compliance with the latest edition of the National Fuel Gas Code,
ANSI Z223.1. Where required by the Canadian authority having jurisdiction, the equipment must be installed in
accordance with the latest edition of the Installation Code for Gas Burner Appliances and Equipment CAN/CSA
B149.1 and/or B149.2 and applicable Provincial Regulations. All appliances conform to the latest edition of the
ASME Boiler and Pressure Vessel Code, Section IV, Part HLW.
4.3 Electrical Requirements
See appliance rating decal for electrical service requirements. The appliance must be electrically supplied and
grounded in accordance with the requirements of the authority having jurisdiction or in the absence of such
requirements, with the latest edition of the National Electrical Code ANSI/NFPA No. 70. In Canada, the electrical
service must conform to local electrical codes and/or CSA C22.1, Canadian Electrical Code, Part 1.
All wiring between the unit and field installed devices must be made with type T copper wire.
Line voltage wire exterior to the appliance must be enclosed in approved conduit or approved metal clad cable.
To avoid serious damage, DO NOT energize the unit until the system and appliance is full of water.
4.4 Handling and Location
WARNING: Use industry standard safe rigging methods, such as including the use straps and spreader bars
and lifting from the water heater base skid assembly, when attempting to lift or move this product. Failure to
follow industry safe rigging methods could result in property damage, serious injury or death.
1 Check the data decal on the appliance. Be sure the electrical, water, oil, or gas supply is adequate for the
installation.
2 Carefully remove all shipping supports and bracing.
3 These units are suitable for indoor installation only.
4. Installing the water heater on a 4 inch to 6 inch housekeeping pad is recommended to ensure proper condensate
drainage.
5. Locate the unit so that if water connections should leak, water damage will not occur. When such locations are
unavoidable, install a suitable drain pan, and plumb pan to ensure adequate drainage in the event of a leak.
Under no circumstances is the manufacturer responsible for water damage in connection with this unit, or any of
its components. The manufacturer’s warranty does not cover water damage.
6. Protect associated electrical components and electrical connections from water (dripping, spraying, rain, etc.)
during appliance operation and service.
7. Place the appliance on a level, non-combustible floor. Concrete over wood is not considered non-combustible.
11 PV500-45U 06/12
8. Do not install on carpet or other combustible floor coverings. If installation over a combustible floor is required,
follow these guidelines:
Use a base of hollow clay tile or concrete blocks from 8" to 12" thick and extending 24" beyond the sides.
Place the blocks in line so that the holes line up horizontally to provide a clear passage through the blocks.
Install 1/2” fireproof millboard with a 20-gage sheet metal cover over the block base.
Center the unit on the base. Also follow this procedure if electrical conduit runs through the floor, and
beneath the appliance. A field-installed base must meet all local fire and safety code requirements.
4.5 Service Clearances
Allow sufficient space to provide adequate clearances on all sides for service and inspection. At least 24” above the
water heater is required for filter replacement (if equipped) and burner/gas control service, 18” at left and right sides
of the appliance. Optional equipment may increase the clearance requirements. Allow sufficient space for installing
and servicing connections such as water, gas, vent, combustion air, electrical, pump and other auxiliary equipment.
4.6 Clearances To Combustible Surfaces
Minimum 1” clearance must be provided from any vent surface to adjacent combustible material. The minimum
clearances to unprotected combustible material are 24” be provided at the front, 8” be provided at the rear and 8” at
top, left and right sides of the appliance.
5 GENERAL PIPING GUIDELINES
5.1 Inlet and Outlet Connections
1. Use only non-ferrous water piping and fittings. Do not use galvanized pipe or fittings. Use of ferrous or
galvanized pipe or fittings can cause rust to form.
2. Install shut-off valves and unions on the inlet and outlet water piping for servicing. Use caution when
threading pipe nipples into tank connections to prevent cross threading, or over-tightening. Always use a
back-up wrench on tank nipples when tightening unions, valves, etc.
3. Insulate hot water and return circulation lines. Insulate cold water supply lines if subject to freezing during
shutdown periods. IMPORTANT: Do not use the plumbing connected to the appliance as a ground for
welding or any other purpose.
4. Pipe the drain valve to a suitable open drain.
5.2 Building Return Piping
To maximize water heater efficiency, connect the building return (≈ 5 gpm) directly to the return fitting located at the
rear of the tank.

12 PV500-45U 06/12
SINGLE WATER PIPING
SINGLE STORAGE WATER HEATER WITH SUPPLEMENTAL STORAGE TANK

13 PV500-45U 06/12
TWO WATER HEATERS WITH REVERSE RETURN PIPING
6 CONDENSATE DRAIN, TRAP & DISPOSAL
The Tricon water heater is designed to produce significant amounts of condensate because of its high efficiency.
Condensate occurs naturally when water vapor in combustion gases is cooled below the dew point. A 3/4” NPT drain
connections is provided. A trap with three inches of standing water below the bottom of the heater (3” above the base
of the I-Beam skids), and no higher than the bottom of the heater must be field installed as part of the condensate
piping.
WARNING: A trap with three inches of standing water as described in these instructions must be included as
part of the condensate piping system. This trap is required to keep hazardous products of combustion from
continually entering the room through the condensate piping. Failure to provide this trap can cause,
personal injury, exposure to hazardous materials or loss of life.
1. Installing the water heater on a 4 inch to 6 inch housekeeping pad is recommended to ensure proper
condensate drainage.
2. Attach a 3/4” CPVC pipe from the heater condensate to a 3” CPVC trap and on to a suitable floor drain or
collection system. Each condensing appliance must drain separately. Do not combine condensate drains from
multiple condensing appliances into a single drain pipe.
3. Each condensate drain must contain a trap or siphon/pigtail to provide at least 3 inches of standing water, to
prevent flue gas flow through the condensate piping. To construct the trap, connect to the 3/4” condensate
drain, route the piping downward until the standing water in the trap is not higher than the bottom of the water
heater.
4. Install the condensate plumbing as shown in the following diagram.
5. All condensate plumbing must be protected from freezing. Do not locate the condensate piping such that an ice
dam of frozen condensate can block the outlet.

14 PV500-45U 06/12
Condensate Piping and Trap with Optional Condensate Neutralizer
6.1 Condensate Neutralization System (optional)
Although only slightly acidic (3-5 PH), condensate can be routed through an optional Condensate Neutralization
System (see image below) to become pH neutral allowing for disposal into any drain or sewer system without
concern for corrosion. Condensate slowly flows through a neutralization bath filled with renewable crushed limestone
becoming neutralized thus avoiding chemical treatment or dilution using substantial quantities of tap water. To obtain
a Condensate Neutralization System, please contact your local PVI representative.
1. Follow the steps 1 through 4 in the Condensate Drain, Trap & Disposal section above.
2. Locate the Condensate Neutralization System in the condensate piping, as shown in the FIELD INSTALLED
CONDENSATE DIAGRAM above.
3. Position with removable crushed limestone fill-cap in vertical position only. The bottom of the condensate
neutralization system outlet pipe must not be higher than the bottom of the water heater.
4. For proper operation, the water heater condensate outlet must be plumbed with CPVC plastic pipe to the lowest
fitting of the Condensate Neutralization System, connecting to the “INLET” as shown in the graphic below.
5. Keep the Condensate Neutralization System closed at all times, except for maintenance.
Optional Condensate Neutralization System
WARNING: Keep the Condensate Neutralization System closed at all times the appliance is operating. The
system must remain closed to prevent hazardous products combustion from continually enter the room.
Failure to keep the Condensate Neutralization System closed can cause property damage, personal injury,
exposure to hazardous materials or loss of life.

15 PV500-45U 06/12
7 GAS SUPPLY AND PIPING
Verify that the type of gas specified on rating plate is supplied to the unit. This unit is orificed for operation up to 2000
feet altitude. Appliance Btuh output derates 4% per 1000 feet elevation above sea level. Consult Factory for
installations above 2000 feet elevation.
7.1 Gas Train and Controls Certification
NOTE: The gas train and controls assembly provided on this unit have been tested under the applicable American
National Standard to comply with safety and performance criteria such as proper ignition, combustion and safety
shutdown operation.
7.2 Gas Control Trains
All models include gas control trains with the following components: main manual shutoff valve, two safety shutoff
valves, proportionator regulator and a final manual valve with the manifold pressure tap on the side of the valve.
These components may be separate or two or more may be combined in a common housing.
CAUTION: Do not adjust or remove any screws or bolts on gas train control components which are sealed
with a red or blue colored compound. Doing so will void all approvals and warranties.
7.3 Inlet Pressure
Measure at the inlet pressure tap located at the main gas cock. The inlet pressure must remain within the minimum
and maximum values while the unit is at rest and while the unit is operating at maximum firing rate.
7.4 Manifold Pressure
Measure at the pressure tap located downstream side of the manual valve closest to the burner. The rated manifold
pressure appears on the product data label located near the front of the appliance.
7.5 Gas Piping Size
Use the values in “Convert Fittings To Equivalent Straight Pipe” to add the equivalent straight pipe for each elbow or
tee to obtain the total distance from the meter.
INLET PRESSURE NAT. GAS LP
Maximum Static Pressure (Inches-Water Column) 14" 14"
Minimum Flow Pressure (Inches-Water Column) 4.5" 11"
CONVERT FITTINGS TO EQUIVALENT STRAIGHT PIPE
Diameter Fitting (inches) ¾" 1" 1¼" 1½" 2" 3" 4" 5"
Equivalent Length of Straight Pipe (feet) 2' 2' 3' 4' 5' 10' 14' 20'

16 PV500-45U 06/12
Use this corrected total distance from the meter for determining the suggested pipe size in the “Single Unit
Installation Suggested Gas Pipe Size” table.
*Multiplier for Propane: 1.57
**Multiplier for alternate pressure drops: 0.3" W.C. 0.77; 1.0" W.C. 1.41; 2.0" W.C. 2.00; and 4.0" W.C. 2.82.
7.6 Appliance Isolation during Gas Supply Piping Pressure Test
1. The appliance and its provided manual shutoff valve must be disconnected from the gas supply piping system
during any pressure testing of that system at test pressures in excess of ½ PSI (3.5 kPa).
2. The appliance must be isolated from the gas supply piping system by closing its individual manual shutoff valve
during any pressure testing of the gas supply piping system at test pressures equal to or less than ½ PSI (3.5
kPa).
3. The appliance and its gas connection must be leak-tested before placing it in operation.
Equivalent Feet
From Meter
SINGLE UNIT INSTALLATION SUGGESTED PIPE SIZE
Maximum Capacity for Natural Gas*
MBTU/HR Based on 0.5" W.C. Pressure Drop**
1-1/4" 1-1/2" 2" 2½" 3" 4"
25 860 1320 2475 3900 7000 -
40 660 990 1900 3000 5300 -
60 - 810 1520 2400 4300 -
80 - 690 1300 2050 3700 -
100 - 620 1150 1850 3250 6700
125 - - 1020 1650 2950 6000
150 - - 950 1500 2650 5500
175 - - 850 1370 2450 5000
200 - - 800 1280 2280 4600
MULTIPLE UNIT INSTALLATIONS GAS PIPING SIZE CHART
Maximum Capacity of Pipe in Thousands of BTU’s per hour for gas pressures of 14 Inches Water Column (0.5
PSIG) or less and a pressure drop of 0.05 Inch Water Column (Based on NAT GAS, 1025BTU’s per Cubic
Foot of Gas and 0.60 Specific Gravity).
Nominal Iron
Pipe Size,
Inches
Length of Pipe in Straight Feet
10 20 30 40 50 60 70 80 90 100 125 150 175 200
3/4 369 256 205 174 155 141 128 121 113 106 95 86 79 74
1 697 477 384 328 292 267 246 256 210 200 179 164 49 138
1 1/4 1400 974 789 677 595 543 502 472 441 410 369 333 308 287
1 1/2 2150 1500 1210 1020 923 830 769 707 666 636 564 513 472 441
2 4100 2820 2260 1950 1720 1560 1440 1330 1250 1180 1100 974 871 820
2 1/2 6460 4460 3610 3100 2720 2460 2310 2100 2000 1900 1700 1540 1400 1300
3 11200 7900 6400 5400 4870 4410 4000 3800 3540 3300 3000 2720 2500 2340
4 23500 16100 13100 11100 10000 9000 8300 7690 7380 6870 6150 5640 5130 4720
17 PV500-45U 06/12
7.7 Gas Connection
1. Safe operation of unit requires adequate gas supply with the required static and dynamic (flow) pressures. Actual
piping selection depends on many variables that must be carefully considered by the gas piping system designer.
Do not select gas pipe sizes based only on the supplied tables. These tables are for use by the gas piping
system designer as a reference in checking pipe size selections.
2. Gas pipe size may be larger than heater connection.
3. Installation of a union is suggested for ease of service.
4. Install a manual main gas shutoff valve, outside of the appliance gas connection and before the appliance
provided appliance manual shutoff gas valve, when Codes require.
5. The gas system installer should clearly identify the emergency shut-off device.
6. A sediment trap (drip leg) MUST be provided in the inlet of the gas connection to the unit.
7. The code compliant vent limiters are designed and must respond to pressure changes in the installation
environment, as opposed to outdoor pressure. For proper operation, do not connect to outdoor atmosphere.
8 COMBUSTION AND VENTILATION AIR
Provisions for adequate combustion and ventilation air to the mechanical room must be in accordance with Section
5.3 “Air for Combustion and Ventilation” of the latest edition of the National Fuel Gas Code, ANSI Z223.1 and/or
CAN/CSA B149, Installation Codes or applicable provisions of the local building codes.
8.1 Equipment Located In Confined Spaces
Equipment located in confined spaces requires two openings installed within 12” (30.5 cm) from the top and bottom
of the room to assure adequate combustion air and proper ventilation. The total input of all gas utilization equipment
installed in the room must be used to determine the required minimum air volume needed for combustion, ventilation
and dilution of flue gasses.
All Air From Outdoors:
Each opening requires a minimum free area of 1 square inch per 4000 Btu/hr input if directly communicating
with the outdoors or communicating to the outdoors through vertical ducts.
Each opening requires a minimum free area of 1 square inch per 2000 Btu/hr input if communicating with the
outdoors through horizontal ducts.
All Air From Inside The Building:
Each opening requires a minimum free area of 1 square inch per 1000 Btu/hr input, but not less than 100 square
inches (0.06 m2).
Combination Of Air From The Indoors And From The Outdoors:
Refer to National Fuel Gas Code, ANSI Z223.1 and/or CAN/CSA B149, Installation Codes or applicable
provisions of the local building codes.
NOTE: This unit may be installed with a remote air intake system which uses a make-up air duct to draw combustion
air directly from outdoors.
WARNING: Adequate clean combustion air must be provided to the appliance. Under no circumstances
should the appliance ever be under a negative pressure. Particular care should be taken when exhaust fans,
compressors, air handling units, etc. may rob air from the appliance. The combustion air supply must be
completely free of any chemical or fumes, which may be corrosive to the appliance. Some common chemical
fumes to avoid are fluorocarbons and other halogenated compounds, most commonly present as
refrigerants or solvents, such as Freon, trichloroethylene, perchlorethylene, chlorine, etc. These chemicals,
when in contact with the equipment or when burned, form acids which quickly attack the tubes, flue
collector, stack and other appliance and auxiliary equipment. The result of inadequate clean combustion air
or negative pressure can be premature unwarranted product failure or unsafe operation producing carbon
monoxide that could escape into the building. Exposure to carbon monoxide can lead to injury or death.

18 PV500-45U 06/12
8.2 Maximum Allowed Remote Combustion Air Inlet Length (Equivalent Length)
A vertical or horizontal remote air inlet system can be connected to this appliance without modification. The
maximum length of field supplied single wall pipe, such as galvanized ventilation pipe, is shown in the chart below
titled Maximum Air Inlet Duct Equivalent Length. Use metal tape or RTV sealant to seal each pipe joint.
Maximum Air Inlet Duct Equivalent Length
Duct Size 6” Duct 7” Duct 8” Duct 9” Duct
Max Equivalent Length 100 feet 130 feet 250 feet 450 feet
To determine the maximum straight length of duct allowed, use the Duct Fitting Equivalent Length chart below to find
the total equivalent length for all duct fittings in your combustion air system. Then subtract this number of feet from
the total equivalent length allowed in Maximum Air Inlet Duct Equivalent Length chart above. The sum of this
calculation is the maximum length of straight duct allowed. If a longer length is required, repeat the calculation using
a larger duct size. No additional deduction is required for the addition of the duct system terminal.
Duct Fitting Equivalent Length
Duct Pipe: 6” Duct 7” Duct 8” Duct 9” Duct
90º Elbow 8 feet 9 feet 10 feet 11 feet
90º Long Radius Elbow 5 feet 5 feet 5 feet 6 feet
45º Elbow 5 feet 5 feet 5 feet 5 feet
The following remote air duct information is provided for use in design calculations, if needed.
Remote Air Duct Specifications
Input MBtu Required Air (SCFM)
399 87
500 108
750 163
900 195
1000 217
8.3 Remote Combustion Air Cap
A UL Listed air intake vent termination cap MUST be attached to the remote combustion air vent termination to
adequately protect the combustion air inlet from wind and weather. A UL Listed air intake termination cap is available
from PVI Industries and may have shipped with the water heater as a purchased option.
8.4 Vertical or Horizontal Remote Air Duct Termination
Air inlet and exhaust vents should terminate in the same wind pressure area whenever possible.
Air inlet must be located no less than 3 feet (0.91m) below the exhaust terminal if they are within 10 feet (3.05 m)
of each other.
If terminating through the roof, the air inlet must terminate at least 12 inches (0.3 m) above roof level and at least
12 inches (0.3 m) above snow levels.
If terminating through a sidewall, the air inlet must terminate at least 12 inches (0.3 m) above grade and/or at
least 12 inches (0.3 m) above normal snow levels.

19 PV500-45U 06/12
Vertical Remote Air Horizontal Remote Air
8.5 Remote Air Consideration for Combined Remote Air Ducting
Each water heater MUST have separate intake piping. Consult factory for common air intake pipe sizing.
9 VENTING
9.1 Venting the TRICON:
TRICON models are designed for operation only with stainless steel venting listed by UL, ULC, ETL or CSA for
Category IV, positive pressure, gas appliance venting. Follow the vent manufacturer’s instructions for installation,
sealing, supporting and terminating their vent system. Do not use plastic venting of any type. Do not use a
barometric damper with the TRICON positive pressure vent.
WARNING: Use only stainless steel venting listed by a nationally recognized testing laboratory for Category
IV, positive pressure, gas appliance venting. Use of plastic pipe of any type or use of venting materials other
than specified in these instructions can result in failure of the venting system and/or exposure to carbon
monoxide which can result in property damage, personal injury or death.
WARNING: Do not vent this water heater into an existing or traditional gas vent or chimney or combine the
vent with any other appliance. Such venting could result in failure of the venting system and/or exposure to
carbon monoxide which can result in property damage, personal injury or death.
9.2 Maximum Category IV Vent Length (Equivalent Length)
A vertical or horizontal remote Category IV vent system must be used with this appliance. The maximum length of
field supplied Category IV vent is shown in the chart below titled Category IV Vent Equivalent Length.
Maximum Category IV Vent Equivalent Length
Vent Size 6” Vent 7” Vent 8” Vent 9” Vent
Max Equivalent Length 100 feet 130 feet 250 feet 450 feet
Pipe fittings reduce the maximum allowable vent length. Use the Category IV vent manufacturer’s equivalent length
deduction for all elbows, terminations, etc. If the information is not readily available from the vent manufacturer, use
the Vent Fitting Equivalent Length chart below to find the total equivalent length for all vent fittings in your
combustion air system. Then subtract this number of feet from the total equivalent length allowed in Maximum
Category IV Vent Equivalent Length chart above. The sum of this calculation is the maximum length of straight vent
allowed. If a longer length is required, repeat the calculation using a larger vent size. When using this chart, no
additional deduction is required for the addition of the vent system terminal.

20 PV500-45U 06/12
The following vent information is provided for use in design calculations, if needed.
Venting Specifications
Input MBtu Combustion Air
Volume (cfm) Max Vent
Press. ”W.C.
399 136 0.5
500 170 0.6
750 255 1.0
900 306 1.2
1000 340 1.3
9.3 Vertical or Horizontal Vent Termination:
1. The vent terminal must have a minimum clearance of 4 feet (1.22 m) horizontally from, and in no case be
located above or below, unless a 4 foot (1.22 m) horizontal distance is maintained from electric meters, gas
meters, regulators and relief equipment.
2. The vent cap must terminate at least 3 feet (0.91 m) above any forced air inlet within 10 feet (3.05 m).
3. The vent shall terminate at least 4 feet (1.22 m) below, 4 feet (1.22 m) horizontally from or 1 foot (0.3 m) above
any door, window or building air inlet to the building.
4. The vent system shall terminate at least 1 foot (0.3 m) above grade and at least 1 foot (0.3m) above possible
snow accumulation levels and shall terminate at least 7 feet (2.13 m) above grade when located adjacent to
public walkways or gathering areas.
5. To avoid a blocked flue condition, keep the vent cap clear of snow, ice, leaves, debris, etc.
6. The vent must not exit over a public walkway, near soffit vents or crawl space vents or other areas where
condensate or vapor could create a nuisance or hazard or cause property or could be detrimental to the
operation of regulators, relief valves or other equipment.
7. A horizontal vent must extend one foot beyond the wall.
8. A horizontal vent terminal must not be installed closer than 3 feet (0.91m) from an inside corner of an L-shaped
structure.
9. A vertical vent must exhaust outside the building at least 3 feet (0.91m) above the point of the exit and at least 2
feet (0.61 m) above the highest point of the roof within a 10-foot (3.05 m) radius of the termination.
10. A vertical termination less than 10 feet (0.91 m) from a parapet wall must be a minimum of 2 feet (0.61 m)
higher than the parapet wall.
9.4 Combining Category IV Vents
Combined TRICON Category IV gas vent systems must incorporate an Exhausto or Tjernlund variable speed,
modulating, mechanical draft inducer capable of maintaining the appropriate negative draft at the end of the common
flue, to assure that all water heaters in the combined vent system operate with a negative draft. Do not exceed
negative 0.25” W.C. See “Combining Vents with a Draft Inducer” illustration below.
Vent Fitting Equivalent Length
Vent Pipe: 6” Vent 7” Vent 8” Vent 9” Vent
90º Elbow 8 feet 9 feet 10 feet 11 feet
90º Long Radius Elbow 5 feet 5 feet 5 feet 6 feet
45º Elbow 5 feet 5 feet 5 feet 5 feet

21 PV500-45U 06/12
WARNING: Do not connect multiple water heaters vents into a single unpowered or fixed speed powered
vent. This could cause unsafe operation and the potential for poisonous carbon monoxide to enter occupied
areas. Such improper installation can cause property damage, personal injury, exposure to hazardous
materials or loss of life.
Conventional Venting Through the Wall Venting Combining Vents with a Draft Inducer
10 OPERATING AND SAFETY CONTROLS
WARNING: Turn off all electrical service to the appliance when accessing the limit or other controls located
inside the control cabinet. This cabinet contains High Voltage wiring and terminals. If the electrical service
is not turned off and these terminals are touched, a dangerous shock causing personal injury or loss of life
could occur. Close and fasten the control cabinet cover before restoring electrical service to the appliance.
10.1 Temperature and Pressure Relief Valve (s)
A Temperature and Pressure Relief Valve(s) sized in accordance with the ASME Boiler and Pressure Vessel Code
is installed in the tank.
WARNING: Secure the relief valve pipe to a suitable floor drain such that very hot water does not openly
splash during a significant relief valve discharge. If the relief valve pipe is not routed and secured to a
suitable drain, hot water discharge can result in property damage, scalding and personal injury or loss of
life.
The drain pipe may not be smaller than the relief valve opening and must be secured to prevent it from lifting
out of the drain under discharge pressure.
CAUTION: Do not install a reducing coupling, valve or other restriction in the T&P relief valve(s)
discharge line. The discharge line shall allow complete drainage of the valve and line. Relief valves should
be manually operated at least once a year.
Thermal Expansion - A relief valve that periodically discharges may result from thermal expansion, if the
water heater is installed in a system closed by components, such as a backflow preventer or check valve in
the cold water supply. These systems must be provided with means to control expansion. Contact a water
heater or plumbing professional to resolve this situation.
CAUTION: Do not plug the relief valve, as this will eliminate the critical water temperature and
pressure protection it provides.
10.2 Operating Temperature Control
An adjustable digital operating control is located in the front control panel. The control is factory pre-set at
approximately 120ºF. To adjust the setpoint to deliver the desired water temperature, press and release the Set 1
key on the face of the control. When setpoint adjustment is enabled, use the arrow keys to adjust the set point to
the desired system temperature. See TempTrac Electronic Controller Panel in this manual for more information.
22 PV500-45U 06/12
10.3 High Water Temperature Limit Control
Appliances are equipped with adjustable limit and high limit controls to control the maximum discharge water
temperature. These controls are located inside the control cabinet and are accessed by removing the bottom cover.
The high limit control is optionally available as the manual reset type and may be reset by pressing the limit reset
button accessible through the control panel cover. Pressing the reset on the High Limit Control will not cause the
control to reset until the water temperature has dropped below the set point of the manual reset High Limit Control.
The Lower Limit is of the auto reset type and can be dial adjusted to operate just above the set point of the main
Operating Temperature Control.
10.4 Cathodic Protection
PVI water heaters do not utilize cathodic protection. However, in hot water systems utilizing cathodic protection,
hydrogen gas can be produced when the hot water system has not been used for a long period of time (generally
two weeks or more). Hydrogen gas is extremely flammable. To prevent the possibility of injury under these
conditions, one of the hot water system faucets should be opened for several minutes before using any electrical
device connected to the hot water system. If hydrogen is present, there will be an unusual sound such as air
escaping through the pipe as the hot water begins to flow. Do not smoke, have open flames or turn electrical
switches on or off near the faucet at the time it is open.
10.5 Electronic Low Water Cut-Off (Optional)
When the water level is above the electrode position in the tank, the reset pushbutton will energize the control (LED
will be lit). The control remains energized until the water level recedes below the electrode position (LED will not be
lit). Unless otherwise specified, there is a three-second time delay on decreasing level. Water level must be below
tank probe location for full three seconds before control de-energizes.

23 PV500-45U 06/12
11 TEMPTRAC™ ELECTRONIC CONTROLLER PANEL
11.1 Principle Of Operation
The water heater operates to satisfy the setpoint of the TempTrac digital control whose sensor is located near the
top of the water heater tank. Demand (flow) will typically create a drop in temperature, thus activating the water
heater to add heat to the stored water. This setpoint is the desired water temperature to maintain.
11.2 Lower Led Readout
The default display of the lower readout (Probe 1) is the stored water temperature sensed near the top of the water
heater tank. This is used to regulate the temperature of the water heater.
11.3 Upper Led Readout
The default display of this readout will display “nu”. This readout can display a temperature reading from a 2nd
probe. The 2nd probe can be installed in a thermal well (this optional probe and thermal well, with heat conductive
paste, is custom and must be ordered from your PVI representative or directly from PVI) to remotely monitor water
temperatures, such as blended water temperature, downstream of a thermal mixing valve or a remote storage tank.
Both Probe 1 and Probe 2 temperatures are available for monitoring through the optional MODBUS RTU interface.
11.4 Control Buttons
SET Displays and modifies the temperature set points.
In programming mode, it selects a parameter or confirms an operation.
UP Displays and modifies the energy saving (Night Time setback) settings.
In programming mode, it browses the parameter codes or increases a displayed value.
DOWN Displays the working hours of the load relays.
In programming mode, it browses the parameter codes or decreases a displayed value.
CLOCK Changes lower display from the stored water temperature to current time and day.
EXT Changes upper display from Probe 2 temperature to Probe 3 temperature (when installed).
Also displays the temperature difference of the stored water temperature minus Probe 2
temperature. In programming mode it sets the 4-20mA output (password is required).
ON/OFF Switches the control ON or OFF.
(See TempTrac User Manual PV500-40 for full description)
24 PV500-45U 06/12
11.5 To View The Setpoint
Push and release the SET key to see the set point value.
To return to normal display, press SET + UP or wait 15 seconds without pressing any key.
11.6 To Change The Setpoint
Push the SET key. The upper display will show the “St1” parameter name, while the lower display will show its
value.
Use the UP or DOWN key to cycle through the parameter names.
Push the SET key to modify a parameter value. The value starts flashing in the lower display.
To change it push the UP or DOWN keys. Push the SET key again to confirm the value and pass to the setting
of next set point.
Repeat the operations described at points 3, 4, 5.
To Exit: press SET + UP or wait 15 seconds without pressing any key.
NOTE: Each point has a time out of 15 seconds. If any key is pushed within 15 seconds the controller exits the set
points programming procedure.
NOTE: The set value is stored even when the procedure is exited by waiting the time-out to expire.
11.7 To Change Other Parameters
Push the SET and DOWN arrow simultaneously for 3 seconds.
Select the required parameter. The name of the parameter is on the upper display; its value is on the lower
display.
Press the SET key: the value of the parameter will start blinking.
Use UP or DOWN to change the value.
Press SET to store the new value and move to the following parameter.
To Exit: Press SET + UP or wait 15s without pressing a key.

25 PV500-45U 06/12
11.8 LED Display Alarm Messages
Alarm messages are displayed in the upper LED readout and alternate with the default display. An alarm LED ICON
is also illuminated. (See TempTrac User Manual PV500-40 for full description.)
12 REMOTE CONNECTIONS – TERMINAL STRIP
12.1 Making BMS/BAS remote connections for analog and binary (on/off) signals
A terminal strip for the remote connection is located behind the hinged control panel at the top of the cabinet and is
accessed by removing the bottom cover and then removing the screws at the top of the hinged cover.
Important: Do not use single strand bell wire for remote field connections to terminals R1-R2 and C1-C2. Use only
multi-strand copper wire. See table below for wire length and gauge:
WARNING: Turn off all electrical service to the appliance when accessing the remote connections located
inside the control cabinet. These terminals are High Voltage. If the electrical service is not turned off and
these terminals are touched, a dangerous shock causing personal injury or loss of life could occur. Close
and fasten the control cabinet cover before restoring electrical service to the appliance.
ALARM
MESSAGE CAUSE RESULTS OF ALARM CONDITION RECOMMENDED
ACTION
“P1” TP1 probe failure
Inlet temperature sensor is not
connected or is reading incorrectly. Call
for heat and burner modulation output
signal will revert to low fire.
Check wiring and sensor
Terminals 14 & 17
“P2” TP2 probe failure Temperature sensor is not connected
or is reading incorrectly.
Check wiring and sensor
Terminals 15 & 17
“P3” TP3 probe failure
Temperature sensor is not connected
or is reading incorrectly or flue gas
temperature protection is disabled (if
used).
Check wiring and sensor
Terminals 16 & 17
“HA” High temperature limit
setpoint exceeded Buzzer sounds, operation continues Manual reset required
“LA” Low temperature alarm Buzzer sounds, operation continues
HP
Digital input 3 is activated
for one or more of the
following:
Flame failure or any control
component failure, if
equipped with alarm on any
failure option
Unit de-energized after timer delay Manually reset required
LP Digital input 2 is activated Unit de-energized after timer delay Manually reset required
Mn1 Maintenance alarm for
output 1 Buzzer sounds, operation continues Check wiring and sensor
Mn2 Maintenance alarm for
output 2 Buzzer sounds, operation continues Check wiring and sensor
Mn3 Maintenance alarm for
output 3 Buzzer sounds, operation continues Check wiring and sensor
“rtc” The real time clock has lost
its setting Energy saving function disabled Reprogram clock
Wire Gauge 18 GA 16GA 14 GA 12 GA
Maximum Length 30 FT 50 FT 75 FT 100 FT
26 PV500-45U 06/12
12.2 The Following Describes The Functions Of Each Of These Terminals And The Factory-Installed Options
Required To Activate The Terminals:
Note: Terminal P1-P2 are functional only when the water heater is equipped with the factory installed options
required to activate the terminals. Terminals R1-R2, A1-A2, C1-C2 and T1-T2 are standard pre-wired functions on
all models.
R1-R2: Used to activate / de-activate water heater from remote master control.
Terminals are wired to a relay in a remote Energy Management System. When relay closes, circuit from R1 to R2 is
completed and appliance controls are enabled. Appliance ships from factory with jumper between terminals
Remove jumper when connecting to a remote controller.
A1-A2: Used to activate a remote alarm, signaling shutdown of combustion control.
Provides a maximum 10 amp relay contact closure when the flame safeguard terminates combustion due to a
tripped safety interlock (i.e.: air proving switch, high limit switch, low water flow switch or flame sensor, etc.).
P1-P2: Activates remote equipment and requires confirmation signal back to the appliance.
Provides a maximum 10-amp relay contact closure to activate a remote device (i.e.: mechanical room air louvers,
draft inducer or power vent, etc.). The remote device must send return signal via proving switch to confirming proper
operation to terminals C1-C2, prior to the appliance being able to energize. Options Required - Consult Factory.
C1-C2: Used for proving operation of remote device.
Terminals are wired to a proving switch on a remote device such as a power venter. When relay closes, circuit from
C1 to C2 is completed and appliance controls are enabled. This appliance ships form the factory with jumper
between terminals.
T1-T2: Used for external modulation control.
To connect external modulation control, disconnect and cap the blue wire connected to terminal T2 and connect the
external modulating signal to terminals T1 (positive) and T2 (negative).
13 SEQUENCE OF OPERATION
1. Incoming 120VAC
a. Full time power to the Main Control Switch
b. Full time power to the Variable Frequency Drive
2. Power On - When the main control switch is turned on:
a. 120v is applied to the step-down transformer (24v)
b. 120v is applied to the L.W.C.O. terminal L1 (if used)
c. 120v is applied to the Fenwal Flame Safeguard Control
d. 24v is applied to the TempTrac operating temperature control terminal L1
3. Call For Heat - If the TempTrac operating control senses a call-for-heat condition:
a. The High Gas Pressure and Low Gas Pressure Switch (both optional) are energized and their safe
condition is proved.
b. The thermostat contact on the Fenwal Flame Safeguard Control is energized.
c. The flame control will then verify the Airflow-Proving Switch is in the open position, which must exist before
the blower is powered.
d. Energizing the blower should close the airflow proving switch. If the airflow-proving switch is not in the
closed position, the flame control’s fan terminals F1-F2 will power the Variable Frequency Drive (VFD)
blower system at low speed for pre-purge.
e. If the airflow-proving switch does not close following the blower being energized, the flame control will
lockout.

27 PV500-45U 06/12
4. Proof of Air Pressure Switch - The control will look for a signal from the airflow-proving switch, indicating that
the blower is operating:
a. When the airflow generated by the blower is sufficient to cause the differential air switch to close, the 15 -
second pre-purge delay will start.
b. During this period any flue products or combustible gases which may have settled in the water heater are
evacuated.
5. Heat-Up - Following the pre-purge delay, the hot surface igniter will be energized:
a. The flame control will monitor the current applied to the hot surface igniter.
b. If the flame control determines the proving current meets the threshold, a dwell time delay starts to assure
the hot surface igniter has sufficient time to reach ignition temperature.
6. Ignition - When dwell time is completed a 4-second Trial for Ignition (TFI) period is initiated:
a. The Delay-On (Low Fire Hold) Relay and the Gas Safety Valves are energized.
b. During TFI the flame safeguard control will monitor the flame using flame rectification through the hot
surface igniter.
c. If the flame control senses the presence of flame before the end of the TFI period, the igniter will be de-
energized and the flame control will continue to monitor the flame, through the igniter, until the operating
thermostat ends the call for heat condition.
7. Loss of Flame Signal
a. If the igniter fails to sense flame at any time, the igniter and gas valve will be de-energized and the flame
control will reset and begin the call-for-heat sequence again. This will occur 3 times (one time if CSD-1)
before the flame control will lockout.
b. When the call for heat condition ends or flame failure occurs following the third TFI period (one time if CSD-
1), a 30-second post-purge period will begin. This period of blower operation will exhaust any remaining
combustion products from the system.
8. Delay-On Relay - Once the Delay-On (Low Fire Hold) Relay has timed out, it energizes the Modulation Release
Relay (SPDT) to enable the analog signal from the TempTrac to the VFD to regulate the speed of the blower.
a. The TempTrac will continue to monitor the stored water temperature in the tank.
b. When the setpoint temperature is reached the call-for-heat signal to the flame safeguard control is
discontinued.
c. The flame safeguard control deenergizes the VFD blower system and the gas valve, thereby suspending
burner operation.
d. As heat is transferred to the building, the water heater loop temperature will fall below the set point. The
TempTrac will sense this condition and begin the call-for-heat sequence again.
9. Flame Safeguard LED Diagnostic Indicator - If the Fenwal Flame Safeguard Control at any time during the
operating sequence senses an improper operating state and locks out, the diagnostic red LED located on the
control board will flash to indicate one of the following conditions exist:
LED INDICATION FAULT MODE
On Normal Operation
OFF Internal Control Failure – check power
1 Flash Airflow Fault
2 Flashes Erroneous Flame Signal
3 Flashes Ignition Lockout
4 Flashes Hot Surface Igniter Fault
5 Flashes Low Voltage (24 VAC)
6 Flashes Valve Relay Problem
28 PV500-45U 06/12
14 INITIAL STARTUP
14.1 Initial Startup Requirements
Installation should be complete prior to performing initial startup; and the startup must be complete prior to placing
the water heater into service. Starting the water heater without proper piping, combustion air, venting or electrical
systems can be dangerous and may void the product warranty. The following startup instructions should be followed
precisely in order to achieve safe and efficient operation to assure trouble-free service life.
WARNING: Proper startup must be made by a qualified installer or service agency, who must read and
follow the supplied instructions and appliance markings. Failure to complete proper startup before use,
tampering with controls or not following all instructions and markings may damage this equipment, void
the warranty and may result in property damage, personal injury or death.
A Start-up Form is included with each product and must be completed by the qualified installer or service agency
conducting the startup and must be returned to the manufacture to register the warranty. Copies are available at
www.pvi.com.
WARNING: Turn off all power to the water heater when servicing or accessing the blower drive. The blower
drive still has power when appliance switch is off. Failure to turn off all power to the water heater can cause
personal injury, property damage or loss of life.
14.2 Tools and Instrumentation Required Resources
Stack Temperature Gauge
Stack Draft Gauge
Electronic Combustion Analyzer
Manometer for checking gas pressure (2 minimum)
AC/DC Multi-meter (with 20,000 OHM/Volt rating)
Amp Meter
Normal Hand Tools
14.3 Resources
Product Installation & Maintenance Manuals
Start-up Report with instructions
Local, State, & Federal Codes
Toll Free 24-Hour Technical Support: 1-800-433-5654
14.4 On Site Considerations
Electrical Supply in accordance with Nameplate Rating
Uncontaminated Combustion Air
Adequate Fuel Supply
Treated Water Supply (Water heaters)
Consistent Draft
14.5 Startup Procedure
1 Carefully study the burner start-up information included in this manual.
2 Fill system tank with water. Some water appliances may be equipped with an optional air vent. If venting
through the safety valve when filling the appliance, insure gags or fixtures are removed from the safety valve
prior to start-up. Open the safety valve to allow air in the tank to escape.
3 Be sure all connections into the tank are tight, as leaks at tank fittings will damage the insulation.
4 CAUTION: Conduct the following gas train leakage test before start-up, at annual intervals and prior to
investigating the cause of any reported occurrences of delayed ignition.
a. Using an appropriate bubble detection solution, thoroughly coat all gas train pipe connections. If any
bubbles are detected, the leaking connection must be tightened, recoated, and rechecked to assure
stoppage of the leak.

29 PV500-45U 06/12
b. Attach a manometer to measure the gas pressure at the manual gas shutoff valve located just upstream of
the gas train. Adjust gas train inlet pressure to the specified value (e.g. 14" W.C.), and tightly close the gas
train manual shutoff valve closest to the burner.
c. Reattach the manometer to the gas train manual shutoff valve at the burner and record the measured gas
pressure in inches of water column (W.C.). Measure gas pressure again after 15 minutes. If gas pressure
has increased 0.5" W.C. or more, the gas leak must be isolated to one or more of the operating gas valves.
(For example, a solenoid actuated gas shutoff valve.) After any leaking valve is replaced, the reassembled
gas train must be leak tested again before start-up is attempted.
5. Remove enclosure panel cover on the appliance to expose control circuit. A wiring diagram, included in this
packet, will show the controls used in our circuitry.
6. Visually check that all components are intact and no damage has occurred during transit.
7. Check all connections within the control cabinet. A loose connection could cause intermittent shutdowns.
8. All burners will use a hot surface igniter (HSI) as the ignition source. They may use a single gas pressure
regulator and valves, valve regulator combinations or multiple gas trains.
9. Connect a test meter to the control for reading the flame response signal.
NOTE: Some flame controls read the flame signal in micro amps and some in volts DC.
10. CAUTION: Be sure the tank is filled with water. Dry firing can destroy the appliance.
11. Check the inlet gas pressure before start-up, using a manometer or a 0 to 28" W.C. pressure gauge for inlet gas
pressure. (This is the pressure measured before all components in the gas train.) This manometer must stay
connected throughout the testing, as the inlet pressure must be monitored during the firing of the burner.
Record static pressure; it must not exceed 14" W.C. Pressures above this could cause damage to the
diaphragm in the gas valve or pressure regulator.
12. Connect a second manometer to the manifold test port at the shutoff valve closest to the burner.
13. Turn-off main gas shutoff valve.
14. Disable or jumper out any BMS/BAS control interface to allow independent setup and adjustment of
each water heater.
15. Turn unit on using the rocker switch on the front of the control enclosure assembly. When the burner fails to
light, the flame control will lockout.
Start the burner in Low Fire (Burner combustion must be optimized at both Low and High Fire). To set the
TempTrac control for manual modulation output:
Push and hold the EXT key for more than 3 seconds. The LED switches ON and the PS4
parameter is displayed in the upper display, while the PAS label is shown in the lower display.
Release the key, and insert the password: 3-2-1. The value of the modulation parameter PS4 will be
displayed in the lower display. (nu) stands for not used. Return to this condition for automatic
operation.
To adjust modulation manually, push the SET key, the value starts flashing. Then use UP or DOWN
keys to modify it. 100 = High Fire; 0 = Low Fire.
To exit, press SET + UP or wait 30s without pressing any key.
NOTE: After a modification, it will be possible to enter the Modulation output setting without entering the
password for 10min. After this time you will be asked for the password again.
16. Turn-on main gas shutoff valve.
17. If the operating control switches are closed, the burner blower should come on and pre-purge begins.
18. If nothing happens, check for a lockout condition and reset it by pushing the flame safeguard reset button.
Some safety devices are wired in the operating circuit and may not indicate alarm. If no indication of alarm
exists, check gas pressure switches, electronic low water cutoffs (if equipped) and temperature limits.

30 PV500-45U 06/12
19. When the blower motor starts, the flame control will check for a positive air flow. If the air switch or blocked filter
switch (if equipped) is not made the blower will stay on for a period of time then lockout. To adjust the air-
proving switch, turn the adjustment screw counter-clockwise until the air proving light comes on, then turn the
screw one turn counter-clockwise. The blocked filter switch (if equipped) should only be adjusted when the filter
is new. This switch should be turned clockwise until switch makes and then two additional turns. If the gas
valves open and close intermittently during normal operation, adjust pressure switches to increase the
operational threshold until this condition ceases. This procedure should be followed with every burner.
20. After the pre-purge, the flame control energizes the HSI for the heat up period, approximately 30 seconds. At
the end of that period the gas valve is opened for approximately 4 seconds. After the burner has lit and the
primary safety control senses a flame, the burner will remain on until the call for heat is satisfied or operation is
interrupted by a safety device.
21. If the burner fails to light, the flame control will lockout. When this happens press the reset button on the front of
the control to recycle burner and check for improper combustion or week flame signal as a possible cause.
22. Once the main burner flame is established the firing rate will be controlled by the TempTrac control. Refer to
TempTrac manual PV500-41.
Burner Combustion Adjustment
Burner combustion should only be adjusted using a combustion analyzer. Do not attempt to adjust burner by
sound or sight. With the burner firing, insert the combustion analyzer probe in the flue vent approximately two
feet from the appliance. See Gas Train Illustration below for details.
With the burner firing and adjusted to low fire, adjust the regulator screw clockwise to increase gas flow or
counter clockwise to decrease flow. The desired CO2 in the combustion products should be between 8.0 and
9.0% for natural gas, 9.5% to 10.5% for LP gas. Do not attempt to adjust combustion based on manifold
pressure alone. Manifold pressure should only be used as a reference point.
a. Once the desired combustion is achieved at low fire, raise the burner firing rate to high fire. Adjust the valve
orifice clockwise to reduce the flow of gas and counter-clockwise to increase the flow of gas in order to
maintain the desired CO2 in the combustion products between 8.0 and 9.0% for natural gas, 9.5% to 10.5%
for LP gas.
b. When high fire combustion has been reached and combustion is within the proper range, return to low fire
to confirm settings again.
c. CAUTION: If at any point of the modulation range, carbon monoxide is in excess of 300ppm, contact
PVI Industries customer service for assistance.
23. Enable or reconnect any BMS/BAS control interface removed prior to the setup and adjustment of each water
heater.

31 PV500-45U 06/12
Gas Train Illustration for Models 40 through 50
(Optional components may not be shown)
Gas Train Illustration for Models 65 through 100
(Optional components may not be shown)

32 PV500-45U 06/12
15 TROUBLESHOOTING GUIDE
Problem Probable Cause Corrective Action
Starting or Pre-purge
Failure
Power Supply Check fuse and/or circuit breaker. Check voltage at
120/24V step-down transformer.
On-Off Switch Check if On-Off switch is lighted
Temperature Control Check that the operating temperature control is set
higher than the temperature of the water heater.
Flame Safeguard Control Check for bad ground or bad control. Replace if
necessary.
Remote enable/disable open Enable water heater or place jumper between
terminals R1-R2.
Combustion Air blower
Check if fan connection terminals on flame control
is closed
Check for 24V at field access terminal C2. Remote
interlock may be open.
Fan VFD may be defective. Verify proper voltage.
Air-proving Switch
Check switch contacts are closed.
Check for 24V at the N.O. side of air switch
Check for 24V at the common side of air switch
Check for proper blower pressure setting – adjust if
required. Air switch may be defective.
Blocked Filter Switch
(if equipped)
Check for 24V at the N.C. side of the blocked filter
switch. Replace filter or switch as required.
Flame Control Pressure Switch Check for 24V at the pressure switch terminal.
Loose Wire Connections Check connections to all components
Flame Failure
Power Supply Check fuse and/or circuit breaker. Check voltage at
120/24V step-down transformer.
Flame Safeguard Control Check for bad ground or bad control. Replace if
necessary.
Hot Surface Igniter
Check amp draw during heat-up. Replace if amps
greater than 3.1A. Check for overheating condition
due to damaged refractory around igniter.
Air-proving Switch Check if switch is bouncing. Adjust or replace.
Gas Pressure Check for proper inlet static and dynamic gas
pressure.
Combustion Inadequate flame signal may result from improper
combustion. Adjust to proper CO2 levels at low fire.
Grounding Check for proper ground from flame control to
burner housing.
Safety Limits Check all safety limits for fault condition and correct
as required.
33 PV500-45U 06/12
16 REPLACEMENT PARTS
REPLACEMENT
PARTS

34 PV500-45U 06/12
16.1 Control Panel

35 PV500-45U 06/12
16.2 Control Panel Components
(Optional components may not be included)
Key
No. Part No. Description Qty. U/M
1 101947 CONTROL, HOT SURFACE IGNITION FENWAL 1 EA
2 - CONTROL, TEMPERATURE TEMPTRAC 1 EA
3 - DRIVE, VARIABLE FREQUENCY AC EMERSON 1 EA
4 5613 FUSEHOLDER, PANEL TYPE #HTB-28I 1 EA
5 5742 FUSE, MDA 15 AMP BUSS 250V NO SUBSTITUTE 1 EA
6 113915 LWCO, PROTODESIGN #LW-3-C-1-A-03 1 EA
7 58154 PROBE, LWCO WARRICK #3L1D002.75 W/1/8 MPT 316 SST 1 EA
8 102163 PROBE, THERMOSTAT DIXELL #18NB-NTC-25FT NICKEL BRASS 1 EA
9 105266 PROBE, THERMOSTAT DIXELL #50DSS-NTC-1.5M SST 1 EA
10 116458 RELAY, SPST 30A 24V OMRON #G7L-1A-TUB-J-CB-AC24 N.O. * EA
11 102835 RELAY, TIME DELAY ON SSAC #TDU3000A 24-120 VAC/DC 1 TO 102 * EA
12 70565 SWITCH, CARLING #LTILA51-6SBLAM-NBL/125N/INDP BLACK W/AMBER 1 EA
13 70573 SWITCH, SPST N.C. MOMENTARY CONTACT SELECTA #SS229 * EA
14 75908 SWITCH, SPST N.O. MOMENTARY CONTACT SELECTA #SS228 * EA
15 73495 PKG, THERMOSTAT, JUMO #60/60002277 85-180 DEG 3.3 FT CAP 1 EA
16 73498 PKG, THERMOSTAT, JUMO 200 DEG AUTO 3.3 FT CAP STRPKG, 1 EA
17 109827 TRANSFORMER, CONTROL GE #9T58K2876 .150KVA 120/240V 12/24V 60 HZ 1 EA
18 75842 FUSE, MDA 6 AMP BUSS 250V 1 EA
* Contact factory for more information

36 PV500-45U 06/12
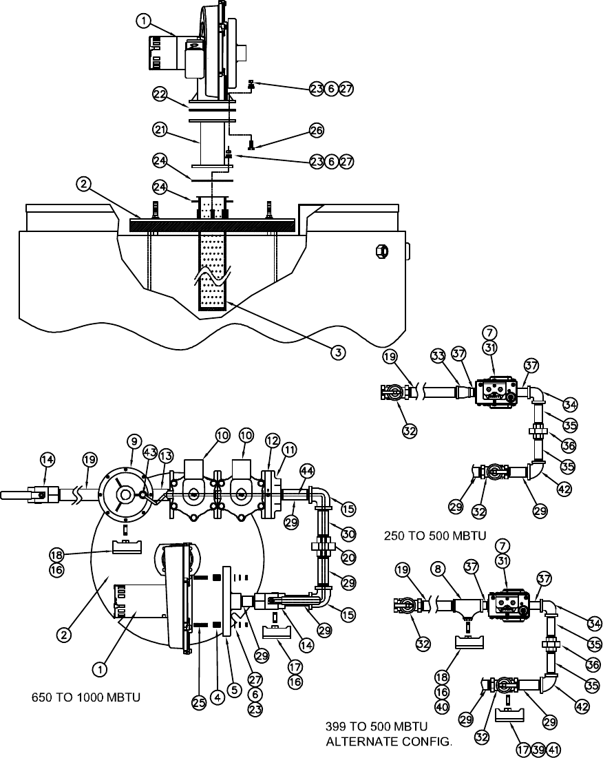
16.3 Burner Assembly
Optional components may or may not be shown

37 PV500-45U 06/12
16.4 Burner Assembly Components
(Optional components may not be included)
Item No. Qty. PVI Part No. Description
1 1 111876 BLOWER, FASCO #70430069
2 1 * ASSY, BULKHEAD REFRACTORY
3 1 * BURNER, METAL PUNCHED
4 6 114513 SPACER, NYLON 1/4 ID X 1/2 OD X 11/16 MCMASTER C
5 1 115248 ASSY, INTAKE GAS AIR 7 OD X 1 NPT
6 14 3494 WASHER, LOCK 1/4 PLT
7 * 110698 HARNESS, WIRING DUNGS FOR TYPE GB-ND 057
8 1 47384 TEE, BLACK 1 X 3/4 X 1/2
9 * 79524 REGULATOR, 1 DUNGS #FRG710/6 ZERO GOVERNOR PROP
10 * 115769 VALVE, GAS 1 ASCO #JB821425O 24V 60AC
11 1 115770 FLANGE, ADAPTER 1 OUTLET ASCO #296658-002
12 2 115786 SHUTTER, VALVE ASCO #HV426038001 1 TO 1 1/2 INCH
13 1 6011 NIPPLE, BLACK 1 X 2
14 2 52823 VALVE, SHUTOFF 1 GAS COMBU #55350 MODEL #840S
15 2 6163 ELL, BLACK 90DEG 1
16 * 5973 NIPPLE, BLACK 1/4 X 2
17 * 101216 SWITCH, PRESSURE HGP-G ANTUNES #8101111202 2 - 20 W
18 * 101201 SWITCH, PRESSURE LGP-G ANTUNES #8103116202 1 - 20 W
19 1 * NIPPLE, BLACK 1
20 1 5929 UNION, BLACK 1
21 1 115255 ASSY, BURNER EXTENSION 2 X 5 FASCO MOD 43
22 1 113571 GASKET, BLOWER OUTLET 4.665 ROUND AMORIM #CR-55R 1
23 14 3475 NUT, HEX 1/4 X 20 NC STEEL ZINC PLT
24 2 107449 GASKET, FLANGE BLOWER 1/8 #23 CRANGLAS
25 6 115745 STUD, THREADED 1/4 X 20 NC X 2 CRS GRAINGER #4REW2
26 6 55854 BOLT, 1/4 X 20 NC X 1 PLT HEX HEAD GR 5
27 14 15607 WASHER, FLAT 1/4 PLT
29 * 6012 NIPPLE, BLACK 1 X 3
30 * 6014 NIPPLE, BLACK 1 X 4
31 * 109843 VALVE, GAS 3/4 DUNGS #252605 TYPE GB-ND 057 24VAC
32 2 5337 VALVE, SHUTOFF 1 KEY GAS #223-122111
33 1 46311 REDUCER, BELL BLACK 1 X 3/4
34 1 6160 ELL, BLACK 90DEG 3/4
35 2 5992 NIPPLE, BLACK 3/4 X 3
36 1 5928 UNION, BLACK 3/4
37 2 5991 NIPPLE, BLACK 3/4 X 2
38 1 5993 NIPPLE, BLACK 3/4 X 4
39 * 5969 NIPPLE, BLACK 1/8 X 2
40 * 6109 BUSHING, BLACK 1/2 X 1/4
41 * 6106 BUSHING, BLACK 1/4 X 1/8
42 1 6164 ELL, BLACK 90 DEG 1 X 3/4
43 1 6496 ELL, 1/4 MPT X 1/4 COMPRESSION
44 3.500 3299 TUBING, ALUMINUM 1/4
* Contact factory for more information
38 PV500-45U 06/12
17 PERIODIC MAINTENANCE
Listed below are items that must be checked to ensure safe reliable operations. Maintenance must be performed by
a qualified service or maintenance provider. To ensure proper maintenance, the following instructions should be
posted near the appliance and maintained in legible condition. Verify proper operation after servicing.
WARNING: When servicing the controls, use exact, Factory authorized, replacement parts and label all
wires prior to disconnection. Verify proper operation after servicing. Incorrect parts substitution and wiring
errors can cause damage, improper operation, fire, carbon monoxide and other unexpected and unsafe
conditions that could result in fire, injury or death.
1. Examine the appliance and venting system at least once a year. Check more often in first year to determine
inspection interval.
a. Check all joints and pipe connections for tightness, corrosion or deterioration.
b. Check the electronic-ignition system for quick ignition and a proper flame signal.
c. Check all safety controls including thermostats for proper operation.
d. Check safety shut-off valves for operation and tightness.
e. Have the entire system, including, but not limited to, the burner, heat exchanger and venting system,
periodically inspected by a qualified service agency.
2. Exposure to Dusty or Dirty Combustion Air: An appliance installed in a dust or dirt contaminated atmosphere will
require replacement of the filter on a 3 to 6 month schedule or more often, based on severity of contamination.
Contaminants can be drawn in with the combustion air. Inadequate combustion air or non-combustible
particulate matter such as dust, dirt, dryer lint, concrete dust, dry wall dust or the like can block burner ports and
cause unsafe operation and a non-warrantable failure. Do not remove filter without a suitable replacement. To
inspect and clean the burner, a qualified serviceman or installer should use the procedures described in item 5
& 6 below.
3. Any sign of soot on the heat exchanger or in the flue indicates the need for a combustion inspection. Properly
installed and adjusted units seldom need heat exchanger cleaning. If soot has formed, the most common
causes are restricted combustion air or excessive gas. A blocked heat exchanger can cause unsafe operation
and will reduce efficiency. To inspect and clean the heat exchanger, a qualified service agent or installer should
use the procedures described in item 5 & 6 below.
4. All gaskets on disassembled components must be replaced on reassembly with exact, Factory Authorized,
replacement parts only. Gasket kits are available from your PVI Industries® Representative or by contacting PVI
Industries®, LLC.
5. Burner and/or Heat Exchanger Inspection and Cleaning Procedure:
a. Turn off main power to unit.
b. Turn off gas supply.
c. Write notes and/or take pictures during this process to aid in correct reassembly.
d. Remove the hot surface igniter, (HSI) from the burner. Be very careful not to bump the igniter element due
to the fragility of the igniter.
e. Remove the nuts that secure the burner top plate to the burner flange and lift the burner top plate up until it
is completely extracted from the burner.
f. Inspect top plate refractory for damage. The refractory should provide a tight seal against the top edge of
the burner deck. The silicone foam gasket located on the top plate flange should also be checked for
damage or excessive compression set.
g. With the burner top plate removed, inspect the deck surface of the burner for lent or other blockage carried
in the fuel air stream. If blockage has accumulated, use brush to loosen debris and use a vacuum to
remove from the burner cavities. Do not brush or scrub the metal fiber burner surface as this can cause
permanent damage to the burner material.
h. Replace any damaged components and reassemble in reverse order. (4-5 ft/lbs).
39 PV500-45U 06/12
i. Cycle unit and test to verify all safety and operating controls are properly functioning and the burner top
plate flange is free of leaks.
6. If equipped, the combustion air filter should be replaced every six months. If filter blockage becomes excessive
the filter safety switch will not allow the burner to fire. To avoid nuisance shutdown in dirty environments, check
and replace filter more frequently.
7. Inspect low water cutoffs and relief valves for proper operation at every six months, or more often if indicated by
inspection.
8. Keep appliance area clear and free from combustible materials, gasoline and other flammable vapors and
liquids.
9. Check frequently to be sure the flow of combustion and ventilation air is unobstructed to the appliance.
10. When electrical controls are serviced or replaced refer to ELECTRICAL COMPONENT LOCATIONS for
identification and location of components.
11. All replacement parts are available through your PVI Industries® Dealer. If you need assistance identifying or
contacting your local dealer, you may contact PVI Industries, LLC directly at the address and telephone number
located on the first and last page of this manual.
12. If the appliance is to be shut down for an extended period of time, the primary gas valve and the water supply
should be shut off. When the appliance is returned to service, a thorough inspection of all utilities and general
appliance condition should be conducted.
40 PV500-45U 06/12
18 RECOMMENDED MAINTENANCE SCHEDULE
1. Annual Maintenance
a. Check all joints and pipe connections for tightness, corrosion or deterioration.
b. Check the electronic-ignition system for quick ignition and a proper flame signal.
c. Check all safety controls including thermostats for proper operation.
d. Check safety shut-off valves for operation and tightness.
e. Test flame failure detection system.
f. Test high limit and operating temperature controls.
g. Conduct a combustion test.
h. Perform leakage test on pilot and main gas valves.
i. Test air switch in functionality.
2. Semi-Annually
a. Recalibrate all indicating and recording gauges.
b. Check flame failure detection system components.
c. Check firing rate control.
d. Check piping and wiring of all interlocks and shutoff valves.
e. Inspect burner components.
f. Check igniter.
g. Test high and low gas pressure interlocks.
h. If equipped, check air filter and replace if required.
3. Monthly Maintenance
a. Test low-water cutoff device and alarm (if equipped).
b. Check flue, vent, stack, or outlet dampers.
c. Check flame signal strength.
d. Check flame failure detection system.
e. Check firing rate control.
f. Listen to and visually check the pilot and main fuel valves.
4. Daily Maintenance
a. Check gauges, monitors, and indicators.
b. Check instrument and equipment settings.
5. As Required
a. Check drip leg and gas strainers.
b. Test flame failure detection system.
c. Test temperature and pressure relief valves in accordance with ASME Boiler and Pressure Vessel
Code Sections VI & VII.
d. Tank flush and cleanout.
41 PV500-45U 06/12

42 PV500-45U 06/12
PVI INDUSTRIES®, LLC 3209 Galvez Ave. Fort Worth, Texas 76111 Phone 1-800-433-5654 www.pvi.com