Q See Digital Peripheral Solutions Dvr Qsdt8Pcrc Users Manual Manualrev091509
Q-See-Qsdt8Pcrc-Users-Manual-167150 q-see-qsdt8pcrc-users-manual-167150
QSDT8PCRC to the manual ab24c15a-3700-4109-815c-73eff4281319
2015-02-04
: Q-See Q-See-Q-See-Digital-Peripheral-Solutions-Dvr-Qsdt8Pcrc-Users-Manual-387615 q-see-q-see-digital-peripheral-solutions-dvr-qsdt8pcrc-users-manual-387615 q-see pdf
Open the PDF directly: View PDF .
Page Count: 104 [warning: Documents this large are best viewed by clicking the View PDF Link!]


Error! Use the Home tab to apply
1 to the text that you want to
appear here. Error! Use the Home
tab to apply 1 to the text that
you want to appear here.
2
CONTENTS
1.1 Summarization............................................................................................... 5
1.2 System Requirements ................................................................................... 7
1.3 Card Specifications ........................................................................................ 7
2.1.1 QSDT8PCRC Card Hardware ........................................................................................ 8
3.1 Video Capture Card Hardware ...................................................................... 9
3.1.1 QSDT8PCRC Card Hardware ........................................................................................ 9
3.1.2 Alarm Board Hardware ................................................................................................ 10
3.1.3 Connect Audio Signal ................................................................................................... 11
3.2 Install Video Capture Card Driver ................................................................. 11
4.1 Display Control Panel .................................................................................. 16
4.1.1 Display Control Panel .................................................................................................. 16
4.1.2 Display Modes ............................................................................................................. 16
4.1.3 Flip Pages ................................................................................................................... 16
4.1.4 Auto Dwell Display Mode ............................................................................................. 17
4.1.5 Capture ....................................................................................................................... 17
4.1.6 Urgent Record ............................................................................................................. 17
4.2 Login ............................................................................................................ 17
4.3 Record ......................................................................................................... 18
4.3.1 Record Modes ............................................................................................................. 18
4.3.2 Record Setup .............................................................................................................. 18
4.3.3 Record Status Panel .................................................................................................... 19
4.3.4 Manual Record Mode .................................................................................................. 20
4.3.5 Sensor Alarm Record Mode ......................................................................................... 20
4.3.6 Motion Detection Record Mode .................................................................................... 20
4.3.7 Schedule Recording .................................................................................................... 21
4.3.8 Recycling Recordings .................................................................................................. 21
5.1 Basic Configuration ..................................................................................... 22
5.2 Video Configuration ..................................................................................... 24
5.3 Motion Detection Configuration ................................................................... 25
5.3.2 Set Motion Detection Area ........................................................................................... 26
5.3.3 Clear Motion Detection Area ........................................................................................ 26
5.4 Schedule Configuration ............................................................................... 27
5.5 Motion Detection Alarm Configuration ......................................................... 28
5.5.1 Alarm Triggering Conditions Configuration ................................................................... 28
5.5.2 Alarm Record ............................................................................................................... 29
5.5.3 Alarm Output ............................................................................................................... 29
5.5.4 Auto Mail Function ....................................................................................................... 30
5.6 E-map Configuration .................................................................................... 32
5.6.1 Edit Map ...................................................................................................................... 32
5.6.2 View Map .................................................................................................................... 33
5.7 P.T.Z Control Configuration .......................................................................... 35
5.7.1 Protocol Setup ............................................................................................................. 35
5.7.2 Serial Ports Setup ........................................................................................................ 36
5.8 Users Configuration ..................................................................................... 37
5.8.1 Change User rights ...................................................................................................... 37
5.8.2 Add User ..................................................................................................................... 38
5.8.3 Delete User ................................................................................................................. 38
7.1 Record Search............................................................................................. 44
7.2 Playing Back and Control ............................................................................ 44
7.3 Other Functions ........................................................................................... 47
7.3.1 Recorded File Backup ................................................................................................. 47

Error! Use the Home ta
b to apply
1 to the text that you want to
appear here. Error! Use the Home
tab to apply 1 to the text that
you want to appear here.
3
7.3.2 Delete Recorded Files ................................................................................................. 48
7.3.3 Capture Pictures .......................................................................................................... 49
7.3.4 Image Zoom in/out ....................................................................................................... 51
Remote Live Surveillance .................................................................................. 53
8.1 Remote Surveillance Server Configuration .................................................. 53
8.2 Setting up Router for Internet Access .......................................................... 54
8.2.1 Port Forwarding ........................................................................................................... 55
8.2.2 Finding Router’s Public IP address .............................................................................. 56
8.2.3 Dynamic Domain Name Services ................................................................................. 57
8.2.4 To Access through Internet Explorer ............................................................................. 57
8.2.5 Unknown Publisher or Unsigned Program Error ........................................................... 59
8.3 Accessing IE client ....................................................................................... 59
8.4 Remote playback ......................................................................................... 63
8.4.1 Record playback and control ........................................................................................ 63
8.5 System setup ............................................................................................... 66
8.5.1 Basic Configuration...................................................................................................... 67
8.5.2 Camera setup .............................................................................................................. 68
8.5.3 Schedule configuration ................................................................................................ 69
8.5.4 Alarm configuration ...................................................................................................... 70
8.5.5 Record configuration .................................................................................................... 71
8.5.6 Motion configuration .................................................................................................... 72
8.5.7 EMAIL Configuration .................................................................................................... 73
8.5.8 P.T.Z Configuration ...................................................................................................... 75
8.6 Mobile Surveillance ..................................................................................... 77
8.6.1 Introduction to Mobile Surveillance............................................................................... 77
8.7 By Smart Phone with Win Mobile Pro or Classic Operating System............ 77
8.8 By Smart Phone with Symbian Operating System....................................... 80
8.9 Accessing From iPhones ............................................................................. 84
Appendix1
Frequently Asked Questions .................................................... 90
Appendix 2.1 Installation ................................................................................... 90
Appendix 2.1.1 Cannot Install the SuperDVR Driver ............................................................. 90
Appendix 2.1.2 Can’t find H.264 series Devices in Device Manager ...................................... 90
Appendix 2.2 How to Use SuperDVR ................................................................ 90
Appendix 2.2.1 Meanings of the indicator lights .................................................................... 90
Appendix 2.2.2 How do the different record modes work? ..................................................... 90
Appendix 2.2.3 How to set recycling record mode on the system .......................................... 91
Appendix 2.2.4 How to set auto reboot function .................................................................... 91
Appendix 2.2.5 How to quickly setup the schedule record function ........................................ 91
Appendix 2.2.6 What are the byte rates for different image qualities from highest to normal? 91
Appendix 2.2.7 The frame rate seems to be lower than what I set ......................................... 91
Appendix 2.2.8 Why can’t I select more channels to backup? ............................................... 91
Appendix 2.3 How to Use Network Function ..................................................... 92
Appendix 2.3.1 How to monitor on the client-side .................................................................. 92
Appendix 2.3.2 Why can’t I download the client-side software? ............................................. 92
Appendix 2.3.3 Why can’t the server be configured at the client-side? .................................. 92
Appendix 2.3.4 Why can’t I see the images? ......................................................................... 92
Appendix 2.3.5 What should I do if the Internet speed is quite slow? ..................................... 93
Appendix 2.3.6 Why can’t I start Webcam server or RPB server? ......................................... 93
Appendix 2.3.7 How much hard drive space do the recorded files take up?........................... 93
Appendix 2.4 Other Questions .......................................................................... 94
Appendix 2.4.1 Why doesn’t the computer display work, or why can’t I access Window system?
............................................................................................................................................ 94

Error! Use the Home tab to apply
1 to the text that you want to
appear here. Error! Use the Home
tab to apply 1 to the text that
you want to appear here.
4
Appendix 2.4.2 Why I can’t find the recorded files? ............................................................... 94
Appendix 2.4.3 Why is the screen’s display unstable with dithering and water-wave images? 94
Appendix 2.4.4 Why does it delay playing back, and why is it slow to close and open the driver?
............................................................................................................................................ 94
Appendix 2.4.5 Why can’t I play back? ................................................................................. 95
Appendix 2.4.6 Why do I see some gray blocks on time progress bar area when playing back?
............................................................................................................................................ 95
Appendix 2.4.7 Why could I see some old recording sections that weren’t available for play back?
............................................................................................................................................ 95
Appendix 2.4.8 Precautions on changing system time .......................................................... 95
Appendix 2.4.9 If system time must be changed, please do following preparations first ......... 96
Appendix 2.4.10 How to use REPAIRDB to repair SuperDVR database ................................ 96
Appendix 2.4.11 How to set power options of Microsoft VISTA system .................................. 96
Appendix2
Quick Start for Using................................................................. 96
Appendix 3.1 Installation Instructions ................................................................ 96
Appendix 3.2 Troubleshooting ........................................................................... 97
Appendix3.2.1 When opening the SuperDVR program, it says ‘ Can’t find card ’. ............... 97
Appendix 3.2.2 How to setup the web client to monitor from Internet ..................................... 97
Appendix3
Function Tree ............................................................................. 99
Appendix 4.1 SuperDVR Function Tree............................................................. 99
Appendix 4.2 System Configuration Tree ........................................................ 100
Appendix 4.3 IE Client FunctionTree ............................................................... 101
Appendix 4.4 Remote Playback Function Tree ................................................ 102

Error! Use the Home tab to apply
1 to the text that you want to
appear here. Error! Use the Home
tab to apply 1 to the text that
you want to appear here.
5
1
Introduction
1.1 Summarization
Thank you for choosing our digital video capture cards.
The QSDT8PCRC 8 Channel cards use software H.264 compression format, and
enable a maximum of 16 channels real-time surveillance in CIF resolution. Our
cards are mature and cost-effective products that should be your ideal choices.
They enable synchronous audio and video compression and transmission along
with their powerful compression rate and network transmission function. They are
widely used in banks, intelligent communities, traffic management units, medical
systems, educational systems, armed forces and so on.
This manual is suitable for SuperDVR 6.3, which supports QSDT8PCRC
cards.
In this manual, you will learn how to install the hardware and driver (software),
and how to setup the systems on this range of products. Please make sure
your operations with the products are strictly in accordance with the manual,
to maintain the stability of the digital surveillance systems.
The following are standard functions of these products:
• Schedule record mode
Users can choose any period in a day to record and set up record modes,
i.e. sensor alarm record, motion detection record, manual record,
Schedule Record.
• Motion detection mode
Motion detection areas are adjustable with a maximum 16 areas for each
channel. Users can also set motion detection sensitivity for each channel.
The system begins to record only when motion is detected is detected on
the channel and after motion stops it will stop recording after a certain time
period, which is adjustable by users.
• Sensor alarm record mode
The system has an external alarm which enables the system to support
alarm input and output.
• Recycling record mode
Users can set recording storage sequence for HDD partitions. The
recording storage will automatically switch to the next partition when the
current one is full. If all the partitions are full and recycling record mode is
enabled, the oldest recorded data will be covered by new data. Users can
also set HDD minimum storage alarm. Then once the present storage
space is less then the minimum storage and recycling record mode is not

Error! Use the Home tab to apply
1 to the text that you want to
appear here. Error! Use the Home
tab to apply 1 to the text that
you want to appear here.
6
enabled, recording will automatically stop.
• P.T.Z control function
Supports many protocols. Users can control multiple speed domes and
integrative cameras, including pan, tilt, zoom, focus and iris adjustment for
P.T.Z devices. Supports preset points and auto scout.
• User management
Different users have different rights, user names and passwords, to
ensure system security.
• Multi-channel display
Supports different multi-channel display modes, full screen display and
auto dwell display.
• One PC can contain 1, 2 or 4 cards of the same model, up to a total of 32
channels
• Supports 320x240 (NTSC), 352x288 (PAL) standard resolutions.
• Image color is adjustable for each channel, including contrast, brightness,
hue and saturation.
• H.264 compression format greatly reduces HDD usage.
• Powerful video playback functions, including playing back, pause, stop,
fast-forward, single-frame play and image capture.
• Supports advanced search mode. Users can search by date/time, camera,
record mode, and random combination of the three methods.
• Supports recorded file backup, delete by date/time, camera.
• Conveniently extend system functions through software upgrades.
• Supports multiple languages, including Chinese (Traditional), English,
German, Spanish, Portuguese and other customized languages.
• CPU and storage resource saving by advanced technology
• Remote Surveillance and P.T.Z control through LAN, Intranet, and
Internet.
• Supports alarm pre-record.
• Supports buzzer, email alarm out.
• Can greatly decrease fragmented files while using NTFS partition.
• User-friendly graphical user interface.

Error! Use the Home ta
b to apply
1 to the text that you want to
appear here. Error! Use the Home
tab to apply 1 to the text that
you want to appear here.
7
1.2 System Requirements
NOTE: If recorded disk partition’s format is FAT32 and the system has
run for a long time, the system will create a lot of data fragments that
may result in system running slowly. It’s recommended to run a disk
defragmenter every 10 to 30 days. We strongly suggest that you use
NTFS format for recording disk partition.
Card
PC Module QSDT8PCRC
CPU Intel P4 processor 2.0G minimum
HDD 200GB minimum free space
RAM 512M minimum
VIDEO CARDS
Supports MOST* AGP and PCI-E Video Cards
with 64MB of RAM or more with full Direct Draw support.
*Some newer PCI-E cards are not yet supported
OS (32 bit) Win2000/WinXP/VISTA
DirectX 9.0
CPU Intel P4 processor 2.0G minimum
Table1-1 QSDT8PCRC System Requirements
1.3 Card Specifications
• Format: PAL/NTSC.
• Resolution: 320x240 (NTSC), 352x288 (PAL).
• Maximum Frame rate per channel: 25 fps (PAL), 30 ftp (NTSC). Screen
set: resolution 1024 768, color quality 16 bits or 32 bits.
• Compression code rate: 50kbps – 1.2Mbps.
• Data format: H.264.
Input Type D type
Video Input 8 Cams
Display Rate 200 fps (PAL) , 240fps (NTSC)
Recording Rate 200 fps (PAL), 240fps (NTSC)
Compression
Format
H.264
Video Resolution 352x288 (PAL) 320x240(NTSC)
Recorder Media HDD, USB Disk, ZIP, CD-R/W via PC
Record Mode Motion/Sensor/Schedule/Manual
Network TCP/IP
I/O Device 8 Ch sensor Input, 1 Ch Relay Output (on board)

Error! Use the Home tab to apply
1 to the text that you want to
appear here. Error! Use the Home
tab to apply 1 to the text that
you want to appear here.
8
PTZ Protocol Configurable, Remote Control Capability
Remote Software Support Internet Explorer Web Browser
interface PCI-E
2
Hardware Installation
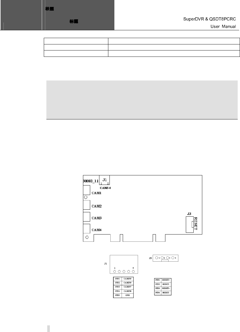
2.1.1 QSDT8PCRC Card Hardware
Figure2-1 TD3008 Video Capture Card
Figure2-2 Pins Definitions of QSDT8PCRC Video Capture Card

Error! Use the Home tab to apply
1 to the text that you want to
appear here. Error! Use the Home
tab to apply 1 to the text that
you want to appear here.
9
3
Hardware Installation
3.1 Video Capture Card Hardware
3.1.1 QSDT8PCRC Card Hardware
Figure3-1 QSDT8PCRC Video Capture Card
VINch2
VINch3
VINch4
VINch5
VINch6
VINch7
VINch8
AGND
P1
CONNECTOR DB15
8
15
7
14
6
13
5
12
4
11
3
10
2
9
1
16
17
VINch1
AGND
PIN1 Video1 PIN6 Video6
PIN2 Video2 PIN7 Video7
PIN3 Video3 PIN8 Video8
PIN4 Video4 Pin9-pin15
GND
PIN5 Video5
Figure3-2 Video Connector and Pins Definition

Error! Use the Home tab to apply
1 to the text that you want to
appear here. Error! Use the Home
tab to apply 1 to the text that
you want to appear here.
10
Figure3-3 QSDT8PCRC Video Capture Card Alarm Port
Pin
Port Define Interpret
Pin
Port Define Interpret
Pin1 Alarm_in1 Alarm Input 1 Pin21
Pin2 Alarm_in2 Alarm Input 2 Pin22
Pin3 Alarm_in3 Alarm Input 3 Pin23
Pin4 Alarm_in4 Alarm Input 4 Pin24
Pin5 Alarm_in5 Alarm Input 5 Pin25
Pin6 Alarm_in6 Alarm Input 6 Pin26
Pin7 Alarm_in7 Alarm Input 7 Pin27
Pin8 Alarm_in8 Alarm Input 8 Pin28
Pin9 Pin29
Pin10 Pin30
Pin11 Pin31
Pin12 Pin32
Pin13 Pin33
Pin14 Pin34 Alarm_Com Alarm COM
Pin15 Pin35 Alarm_NO Alarm Normal Open
Pin16 Pin36 GND Ground
Pin17 Pin37 GND Ground
Pin18 Pin38 5V Power Source (5V)
Pin19 Pin39 Alarm_NC Alarm Normal Close
Pin20 Pin40
Table3-1 Pins Definitions of TD3308 Card
3.1.2 Alarm Board Hardware
Figure3-4 Alarm Board

Error! Use the Home
tab to apply
1 to the text that you want to
appear here. Error! Use the Home
tab to apply 1 to the text that
you want to appear here.
11
Figure3-5 Pins Definition of Alarm Board
Connect J2 to PC serial port and you can use alarm board on SuperDVR
system.
3.1.3 Connect Audio Signal
For QSDT8PCRC, connect the audio input device to the microphone
connector on the motherboard.
Before installing the Video Capture Card hardware in PCI port of the
motherboard, make sure you’ve installed Microsoft DirectX 9.0 or later. Then
turn on the computer, the system will display ‘Found new hardware’.
NOTICE
:
Just click ‘
C
ancel’ and
ignore the pop
-
up message.
Insert the CD that contains H.264 series capture card driver into the CD tray,
and run Setup.exe program to install the driver. The default installation path is
‘C:\Program Files\SuperDVR’.
NOTICE
:
If you get the error message
“
Can’t find card
”
when
running the SuperDVR software, try restarting the computer.
3.2 Install Video Capture Card Driver
STEP1 Run Setup.exe, and the installation interface appears as shown
below:

Error! Use the Home tab to apply
1 to the text that you want to
appear here. Error! Use the Home
tab to apply 1 to the text that
you want to appear here.
12
Figure3-6 H.264 Series Video Capture Card Installation Interface
Figure3-7 Welcome Page
STEP2 Select video system, in the US we use NTSC format, click “next”

Error! Use the Home tab to apply
1 to the text that you want to
appear here. Error! Use the Home
tab to apply 1 to the text that
you want to appear here.
13
Figure3-8 Select Video Format
STEP3 Install driver first.
Figure3-9 Rate of Progress of Driver Installation
STEP4 After this process, it begins to install the application package
SuperDVR, as shown below:
Figure3-10 Select Installation Folder

Error! Use the Home tab to apply
1 to the text that you want to
appear here. Error! Use the Home
tab to apply 1 to the text that
you want to appear here.
14
STEP5 Select a folder or use the default SuperDVR, and click ‘Next’.
Figure3-11 Selecting program folder
STEP6 Click ‘Next’.
Figure3-12 Driver and Application Installation Finished
STEP7 Click ‘Finish’.
STEP8 After all the processes are finished, it will create a shortcut on the
desktop. Restart the computer and launch the surveillance program.
Figure3-13 Shortcut of SuperDVR
NOTICE
:
When you install the driver software on Microsoft VISTA
system, you need select the option shown below. Other steps of

Error! Use
the Home tab to apply
1 to the text that you want to
appear here. Error! Use the Home
tab to apply 1 to the text that
you want to appear here.
15
install
ing
the driver software
on Microsoft VISTA system
s
are the
same as on Microsoft XP systems.
Figure3-14 Installing the Software on VISTA
In cases where users cannot run the SuperDVR program, restart the
computer.
You also need to disable the new user access control function in Vista. To do
so:
Click on the Start button.
Click on Control Panel
Click on User Accounts
Click on the option to “Turn user account control on or off”
Click on the check mark in the box in front of “Use user account control to
help protect your computer” to remove it.
Click on OK.

Error! Use the Home tab to apply
1 to the text that you want to
appear here. Error! Use the Home
tab to apply 1 to the text that
you want to appear here.
16
4
Main Display Interface
Run the SuperDVR program and the main display appears as shown below:
Figure4-1 SuperDVR Main Display Interface
4.1 Display Control Panel
4.1.1 Display Control Panel
Figure4-2 Display Control Panel
Display control panel includes Display Mode buttons, disk free space indicator,
and ‘Auto Dwell’ button. Every button has its built-in indicator light. When you
switch the buttons on and off, the relative indicator lights turn on and off to
indicate the working status.
NOTICE
:
Users can
tell
which
buttons are working by the color of
the buttons.
4.1.2 Display Modes
Figure4-3 Display Modes Panel
4.1.3 Flip Pages
When the display mode is 1CH, 4CH, 9CH, 16CH, click , system will
display the next window according to the display mode.

Error! Use the Home tab to apply
1 to the text that you want to
appear here. Error! Use the Home
tab to apply 1 to the text that
you want to appear here.
17
4.1.4 Auto Dwell Display Mode
If users want to see all the channels in sequence, then click to enter
Auto Dwell display mode.
4.1.5 Capture
If users want to capture a picture from the screen they can click , the
system will save 32 pictures to the default folder on the disk, c:\ path.
4.1.6 Urgent Record
Click , system will be record and save all the cameras.
4.2 Login
Click , and the login window appears. Input the user name and password,
the default user name is ‘SYSTEM’ with no password, users will then access
the main interface. Users can change password for SYSTEM and create new
user names and passwords once they have entered the system.
Figure4-4 Main Interface

Error! Use the Home tab to apply
1 to the text that you want to
appear here. Error! Use the Home
tab to apply 1 to the text that
you want to appear here.
18
4.3 Record
4.3.1 Record Modes
According to different record triggering methods, video capture cards offer
users 4 different record modes:
• Schedule record mode (timer)
• Manual record mode
• Motion Detection record mode
• Sensor Alarm record mode
Motion Detection record mode and Sensor Alarm record mode are called
Alarm Record.
If users use multiple cameras to record, every camera works separately and
the recorded files are also saved separately. The parameters, i.e. camera ID,
record date/time, and record mode are all saved together with the recorded
file.
4.3.2 Record Setup
Figure4-5 Record Configuration Panel
In the ‘Record Panel’ of the Basic Configuration page, users can set all the
necessary parameters for recording.
1. Time Stamp
By selecting this option, the record date / time message appears in the
recorded file images.
2. Switch
By selecting this option, users can turn on corresponding cameras. If there is
no camera on a channel, do not select this option and you will save system
resources.
3. Manual Record
By selecting this option, the images from the selected camera will be recorded
and saved all the time (24 hour recording).

Error! Use the Home tab to apply
1 to the text that you want to
appear here. Error! Use the Home
tab to apply 1 to the text that
you want to appear here.
19
4. Manual Recording Frame Rate
Select the recording frame rate for manual record mode.
5. Schedule Record
This option allows you to record on a set schedule.
6. Schedule Record Frame Rate
Select Schedule Recording frame rate.
7. Motion Detection
By selecting this option, users can set the selected channels to record when
motion is detected in front of the camera.
8. Motion Record Frame Rate
Select recording frame rate for Motion Detection record mode.
9. Sensor Record Frame Rate
If sensors are utilized to trigger recording, users can select recording frame
rate here.
NOTICE
:
Users can select more than one record
mode.
10. Camera Security
Users are divided into three types: Normal user, Power user and Administrator.
By selecting this option, only administrators can see the selected channels.
11. Record Quality
Select recording image quality here.
12. Audio in
SuperDVR 6.0 can support one channel of microphone audio input signal on
the PC motherboard and any audio inputs that are on the card if any. Users
can choose one video channel for each available audio input.
4.3.3 Record Status Panel
Figure4-6 Record Status Panel & Alarm Output Status Panel
Meanings of indicator light colors in row one are shown below:
• Grey light: Normal State
• Light Green light: Manual Record State
• Dark Green light: Schedule Record State
• Yellow light: Motion Detection Record State

Error! Use the Home tab to apply
1 to the text that you want to
appear here. Error! Use the Home
tab to apply 1 to the text that
you want to appear here.
20
• Red light: Sensor Alarm Record State
• Blue light: Video Loss State
When the indicator light color turns into red in row two, it means there is
an alarm output.
4.3.4 Manual Record Mode
Manual Record mode is the most commonly used recording mode. If a
special event occurs, users can select this recording mode and record
immediately.
NOTICE
:
You can
select
a
high frame rate for
a
short time manual
recording, while selecting a low frame rate for long time Scheduled
Record.
4.3.5 Sensor Alarm Record Mode
Users can use sensors to trigger sensor alarm recording on relative channels.
At that time, the record status indicator light will turn red .
4.3.6 Motion Detection Record Mode
This will enable the system to detect image changes and begin to record by
activating motion detection and motion alarm recording. For instance,
somebody opens the door, and the system detects image changes from the
camera and begins to record, then users can play back the recorded file and
find out who opened the door. When there is no movement, the system will
not record which saves system resources, and makes it easier to find
recorded events. The indicator light color in the record status panel will be
yellow .
NOTICE
:
Users
need to setup
parameters
in three places
to
enable
motion detection recording.
•
Select ‘Motion Detection’ for desired channels in ‘Basic
Configuration’.
•
Configure the motion detection areas for desired channels in
‘Motion Detection Configuration’.
•
Configure working schedule for desired channels in ‘Schedule
Configuration’.

Error! Use the Home tab to apply
1 to the text that you want to
appear here. Error! Use the Home
tab to apply 1 to the text that
you want to appear here.
21
4.3.7 Schedule Recording
Users can set working schedule for all of the recording modes in ‘Schedule
Configuration’. The dark green light in record status panel shows the
corresponding channel is in Schedule Record mode. Users can change
record mode to manual record at any time, and the dark green light will
change into a light green light .
Please refer to ‘5.4 Schedule Configuration’ for details.
4.3.8 Recycling Recordings
If users enable the Recycling Record function and all the selected HDD
partitions are full, the oldest recorded data will be overwritten by the latest
recorded data.
Users can set recording storage sequence for HDD partitions. The recording
storage will automatically jump to the next partition when the current one is
full. If all the partitions are full and recycling record mode has been enabled,
the new data will overwrite the oldest recorded data automatically. Users can
also set a HDD minimum storage alarm. Then once the present storage
space is less than the minimum storage needed, and recycling record mode
has not been enabled, the recording will automatically stop.

Error! Use the Home tab to apply
1 to the text that you want to
appear here. Error! Use the Home
tab to apply 1 to the text that
you want to appear here.
22
5
System Setup
Click to enter the main setup interface.
Figure5-1 Basic Configuration
The definitions of the buttons in Figure5-1 are shown below:
Basic Configuration
Schedule configuration
Video configuration
Motion Detection Configuration
Alarm Configuration
P.T.Z Configuration
User Configuration
Save and Return
5.1 Basic Configuration
Click to enter the basic configuration page where users can setup the
system, or just use the defaults.

Error! Use the Home tab to apply
1 to the text that you want to
appear here. Error! Use the Home
tab to apply 1 to the text that
you want to appear here.
23
Figure5-2 Caption and General Configuration
1. Dwell Interval.
If users enable Auto Dwell function on the main interface page, users can set
the dwell time, in seconds, of a screen here.
2. Caption
There are four options, None, ID, Name, and ID/Name for users to select for
all the channels.
• ‘None’ means no title or name;
• ‘ID’ means camera numbers, i.e. 1, 2, 3 and so on;
• ‘Name’ means camera names, i.e. Cam1, Cam2 and so on;
• ‘ID/Name’ means both camera number and camera name, i.e. 1/Cam1,
2/Cam2 and so on.
3. Resolution
There is one resolution option, 320 244 for users to select for all the
channels.
4. Call Monitor
Users can connect another monitor to the card and select the display modes
here.
The following area is for your recording data storage area. Please see section
3.3.8.
Figure5-3 Record Data Storage Precept
SuperDVR shows all the available HDD partitions for users. Users can select
one or more of the partitions that will be used in sequence from top to bottom.
Please refer to section 3.3.8 to learn more about recycling records.

Error! Use the Home tab to apply
1 to the text that you want to
appear here. Error! Use the Home
tab to apply 1 to the text that
you want to appear here.
24
In the following area in the basic configuration page, users can input the
computer user name and password in the relative boxes. Then when
restarting the computer system, it will give access to the system with the user
name and password that was put in the boxes.
Figure5-4 Computer System Reboot Setup
Since the windows system may become unstable after a couple of days of
continuous operating, it may cause SuperDVR to become unstable. You can
use the software support auto-reboot option to help avoid this. Select
and set the interval by day, which will guide the system to
reboot automatically according to the setup.
5. Capture browse
This item is the save path for captured files
Users can fill in the specific save path for their captured pictures.
Click to return to the main display interface.
5.2 Video Configuration
Click and enter the video configuration page as shown below. Users can
change the values of corresponding items, i.e. contrast, brightness, hue,
saturation, auto gain, by moving the levers on the bars. Click ‘Default’, and all
the values will return to the default value.

Error! Use the Home tab to apply
1 to the text that you want to
appear here. Error! Use the Home
tab to apply 1 to the text that
you want to appear here.
25
Figure5-5 Video Configuration
Definitions of the setup items:
1. Contrast
Set image color contrast.
2. Brightness
Set image brightness.
3. Hue
Set image hue.
4. Saturation
Set image Saturation
5. Default
Load defaults, i.e. reset the value of the first four items. The range of values is
from 0—255.
5.3 Motion Detection Configuration
Click and enter the Motion Detection Configuration page,

Error! Use the Home tab to apply
1 to the text that you want to
appear here. Error! Use the Home
tab to apply 1 to the text that
you want to appear here.
26
Figure5-6 Motion Detection Configuration
Definition of the setup items:
1. Sensitivity
Users can set motion detection sensitivity here.
2. Speed
Motion detection speed
3. Block Number
Set grid’s number.
4. Defaults
Reset to default settings.
5. Select All
Select the entire area of the channel as detection sensitive
6. Clear
Clear all the detection areas and then you can select a customized detection
area using the cursor.
5.3.2 Set Motion Detection Area
If users want to customize the detection area for a certain channel, first select
the camera, then select ‘Clear’ and drag the cursor in the box in the left side.
You will see a green box appear which shows the motion detection area. You
can select a maximum of 16 customized areas for each channel.
5.3.3 Clear Motion Detection Area
By clicking ‘Clear’, you can clear all the selected areas.

Error! Use the Home tab to apply
1 to the text that you want to
appear here. Error! Use the Home
tab to apply 1 to the text that
you want to appear here.
27
5.4 Schedule Configuration
Click to enter the Schedule Configuration page as shown below:
Figure5-7 Schedule Configuration
Our H.264 series cards have powerful schedule configuration options. Every
channel has three kinds of recording modes, i.e. schedule record, motion
detection record and sensor alarm record. You are able to set schedules from
Sunday to Monday separately for all of the three recording modes. Sensor
alarm recording mode has the highest priority among all recording modes.
Here users can set schedules for all modes.
When users need to edit the schedule for a channel, first select the camera
name in the three record mode groups, and select the color bars on the right
side, then select ‘Edit’ to edit schedules. Click ‘Add’ to add schedule for a
certain channel.
NOTICE
:
The
added
schedule should not be
duplicate
of
the former
settings.
Click ‘Delete’ to delete schedule. Click ‘Clear All’ to delete all the schedules
for a certain channel.
See the Figure 4-8 Edit Schedule to see the edit schedule window for a
channel:

Error! Use the Home tab to apply
1 to the text that you want to
appear here. Error! Use the Home
tab to apply 1 to the text that
you want to appear here.
28
Figure5-8 Edit Schedule
5.5 Motion Detection Alarm Configuration
5.5.1 Alarm Triggering Conditions Configuration
The system can receive alarms from both local place and network.
Local Alarm Record Triggering Configuration
Figure5-9 Local Alarm Triggering Configuration
Explanation of options:
1. Buzzer
Users can select whether to trigger the computer buzzer if alarms have been
triggered and also select how long the buzzer sounds.
2. Pre-Alarm Record
Users can select whether to enable alarm pre-record and also pre-record
time.
3. Big Screen Holding Time
The corresponding channel will be full screen when an alarm is triggered. Set
the full screen hold time here.
4. Motion Holding Time
How long the recording continues after motion stops.
5. Sensor Holding Time
How long the recording continues after sensor stops.
6. Disk Shortage Alarm
If the Partition free space is less than the set percent, it will stop recording or
recycling, but give alarm tips according to the settings.

Error! Use the Home tab to apply
1 to the text that you want to
appear here. Error! Use the Home
tab to apply 1 to the text that
you want to appear here.
29
5.5.2 Alarm Record
Figure5-10 Alarm Trigger Method Configuration
Every sensor can trigger multiple channels to record. For example, if users
select CAM1, CAM4 and CAM5 for Sensor2, then once the sensor is
activated, CAM1, CAM4 and CAM5 will begin to record. Users can also select
the voltage, high and low, for alarm signals.
5.5.3 Alarm Output
Figure5-11 Alarm Output Configuration
Press in the main interface to access the following Alarm Configuration
area where users can setup a motion detection alarm, sensor alarm, and

Error! Use the Home
tab to apply
1 to the text that you want to
appear here. Error! Use the Home
tab to apply 1 to the text that
you want to appear here.
30
HDD space shortage alarm.
1. Video Loss
Users can select alarm output for this option. For example, users select
alarm_out1 and alarm_out3 for video loss. Then video loss of any channel will
trigger alarm_out1, alarm_out3 to show a red light in the Alarm output status
panel (refer to Figure4-6 for reference to this panel).
2. Disk Alarm
When HDD available space is less than the set value (see Figure5-9), it will
trigger alarm.
3. Sensor
Sensor 1: If users have mounted sensors, when the sensors have been
activated, it will trigger the selected output alarms.
Sensor 2 - Sensor 16: Two QSPD4116 cards have a maximum of 16 sensors.
4. Motion
Motion 1: Users can set the output of motion detection alarm by different
alarms and remote alarm.
Motion 2 - Motion 16: 32CH card has maximum 16 motion alarms.
NOTICE
:
You should choose our additional
alarm device board while
using two QSPD4116 cards for alarm I/O.
5.5.4 Auto Mail Function
Users can select the above-mentioned alarms to be output by Auto Mail.
NOTICE: Before you setup this function, make sure the DVR is set to
Motion Recording.
Click ‘Auto Mail’ icon on the left top side of alarm configuration page to enter
the following area to make Auto Mail setup, refer to Figure5-12.

Error! Use the Home tab to apply
1 to the text that you want to
appear here. Error! Use the Home
tab to apply 1 to the text that
you want to appear here.
31
Figure5-12 Auto Mail Setup Interface
In this area, users can set receiver and sender’s E-mail SMTP server and
address. Note: the address of receiver and sender can be the same.
Figure5-13 Auto Mail Setup
To test the settings, click ‘Send Mail Test’. If all settings are okay, response
‘Message Sent Successfully’ will pop up. If some settings are wrong, a
warning message will pop up.
Enable ‘Attachment’, then a picture of what triggered the alarm will be sent to
the selected mailbox, refer to Figure5-14.

Error! Use the Home tab to apply
1 to the text that you want to
appear here. Error! Use the Home
tab to apply 1 to the text that
you want to appear here.
32
Figure5-14 Attachment Setup
NOTICE
:
For every alarm event, only one picture will be sent.
5.6 E-map Configuration
E-map is used to show full geographic range covered by the whole monitoring
system in the form of map. An E-map features simple operation and direct
display of status and is generally graded or tiered in the form of a tree
diagram.
5.6.1 Edit Map
The system only supports bmp or jpg image format.
NOTICE: You need to draw the floor plan of where you want to install the
cameras in a program such as Paint or Photoshop and save it in BMP
format before using this feature.
Click to enter ‘Emap → Emap Edit’, press right key of Load Picture in
the default interface of the map and select the required map file in the related
folder, open the file and the map will be displayed in this interface, as shown
in Figure5-15 E-Map Edit.

Error! Use the Home tab to apply
1 to the text that you want to
appear here. Error! Use the Home
tab to apply 1 to the text that
you want to appear here.
33
Figure5-15 E-Map Edit
Drag the icon of a camera to the corresponding position on the map, a
maximum of 32 cameras can be set simultaneously, Click ‘change icon’ of
camera by right key to change icon and click ‘Delete’ to cancel camera. After
editing, click right key in the map and select ‘Save Map’ to save the current
map.
A gray map icon can be drawn to the corresponding position in the map on the
right and set it as a sub-map of the current map, or click the gray map icon on
the left by right key and select ‘Open’ to build a new map. You can also click
the blue map icon on the left by right key, and select ‘Rename’ to change the
name of the map or select ‘Close’ to cancel this map.
5.6.2 View Map
Click to enter E-map, where the user can view distribution of all
cameras in the map, as in Figure5-16 View Cameras.

Error! Use t
he Home tab to apply
1 to the text that you want to
appear here. Error! Use the Home
tab to apply 1 to the text that
you want to appear here.
34
Figure5-16 View Cameras
When a channel alarm is triggered, the camera icon will flash a yellow alarm
signal. Select ‘Auto Show’, in case of an accidental alarm, an alarming
screen will pop out automatically and you can know about the alarming
position immediately. Click the camera head by right key to show the screen
on the spot.
NOTICE
:
1. The map tree currently supports three levels and it is invalid for
any more then that.
2. For loading of a picture, when any side of length and width of the
picture exceeds size of picture frame, it will be enlarged and
shortened proportionally and standard size of picture frame is
833x678.
3. On this interface, click camera by right key to display the spot and
the 3316 card does not support this function temporarily.
4. If ‘Auto Show’ is set in case that E-map pops up by automatic
alarming, the E-map interface set with ‘Holding Time’ without any
operation and alarm will be close automatically. ‘Auto Show’ is
invalid when the E-map is opened manually.
5. The map in the E-map is the default demonstration map, and the
user can invite an engineering merchant to make the practical map
or draw a map by their own according to their actual needs, then
scan and save it in the computer to picture.

Error! Use the Home tab to apply
1 to the text that you want to
appear here. Error! Use the Home
tab to apply 1 to the text that
you want to appear here.
35
5.7 P.T.Z Control Configuration
Click and enter PTZ Configuration:
Figure5-17 PTZ Configuration Panel
5.7.1 Protocol Setup
Users can select different protocols, serial port number for P.T.Z devices.
The settings you enter here must match the setting on the PTZ camera.
Figure5-18 P.T.Z Protocol Setup
1. Port
Users can set serial port number.
2. Protocol
Communication protocol of P.T.Z device
SuperDVR supports the following protocols:

Error! Use the Home tab to apply
1 to the text that you want to
appear here. Error! Use the Home
tab to apply 1 to the text that
you want to appear here.
36
DSCP, DH-SD, Lilian, Minking, Neon, PelcoD, PelcoP, Star, VIDO, VISCA
3. Address
Communication address of P.T.Z device (ID number)
5.7.2 Serial Ports Setup
Users should first enable the P.T.Z control function of a certain camera and
select a port number in P.T.Z Protocol Setup (refer to Figure5-18), and then
set corresponding parameters in the area below:
Figure5-19 P.T.Z Serial Port Setup
1. Port
Users can set port number.
2. Baud Rate
Set P.T.Z device Baud Rate to match setting on camera, default value is 9600.
3. Data Bits
Default value is 8.
4. Parity
Odd and even parity bit, default None.
5. Stop Bits
Default value is 1.
NOTICE
:
Users should look
at
the
control board of the
P.T.Z device
and get the Baud Rate, Protocol, and Address first, then enter the
same values into the SuperDVR program.

Error! Use the Home tab to apply
1 to the text that you want to
appear here. Error! Use the Home
tab to apply 1 to the text that
you want to appear here.
37
5.8 Users Configuration
Click to access the User’s Configuration area:
Figure5-20 User configuration
After installing the SuperDVR program, it will automatically create an
administrator user with the user name SYSTEM with no password. Users can
use this username to log in the system and ‘Add’, ‘Edit’ or ‘Delete’ users’
parameters.
5.8.1 Change User rights
Select a user in User Configuration area (refer to Figure5-20), and click ‘Edit’
to entire Edit User area, as shown below:
Figure5-21 User Password and Rights Edit
Users can edit user’s password and rights here, but not the user name.
The system offers three kinds of rights:

Erro
r! Use the Home tab to apply
1 to the text that you want to
appear here. Error! Use the Home
tab to apply 1 to the text that
you want to appear here.
38
• Administrator: this user has the right to change all the settings and
playback. This user also has the right to assign users power user rights and
normal user rights.
• Power User: This type of user is authorized by the administrator. The
administrator assigns rights to power users by checking boxes in the Power
User list. Please refer to the following figure:
•
Normal User: Normal user’s rights are also assigned by the administrator.
They have the same list of available rights as Power Users. However, whether
they can possess a right is be decided by the administrator. Only if the
administrator assigns that right, will they have the right. For example, if Basic
Configuration is checked, the Normal User can access these functions.
NOTICE
:
Administrators can change
and authorize rights to
Power
Users and Normal Users, but they cannot change or authorize other
Administrators’ rights.
5.8.2 Add User
Click ‘Add’ in User Configuration (refer to Figure5-20), to access the Add
User area:
Figure5-22 Add User
Input user name, password, confirm password and select user rights, and
then click ‘OK’.
5.8.3 Delete User
Select the user name in User Configuration (refer to Figure5-20), and click
‘Delete’, and confirm delete. See below:

Error! Use the Home tab to apply
1 to the text that you want to
appear here. Error! Use the Home
tab to apply 1 to the text that
you want to appear here.
39
Figure5-23 Confirm Delete User

Error! Use the Home tab to apply
1 to the text that you want to
appear here. Error! Use the Home
tab to apply 1 to the text that
you want to appear here.
40
6
P.T.Z Control
Click in the SuperDVR main display interface (refer to Figure4-1) to
access the P.T.Z control area:
Figure6-1 P.T.Z Control Interface
Users can control P.T.Z. devices by the function buttons on the right side,
shown below:
Figure6-2 P.T.Z. Control Function Buttons Panel
In the lower circle, there are five function buttons, i.e. up, down, left, right, and
stop. The other buttons are Focus buttons (+ and -), Zoom buttons (+ and -),
and Iris buttons (+ and -). Click and to increase and decrease the
corresponding values.
When users need to use P.T.Z control, first enter P.T.Z Control Interface (refer
to Figure6-1), and click the corresponding channel (users will see a red fringe
around the channel), then users can begin to control the enabled P.T.Z.

Error! Use the Home tab to apply
1 to the text that you want to
appear here. Error! Use the Home
tab to apply 1 to the text that
you want to appear here.
41
camera.
NOTICE
:
After
press
ing
left mouse button on
any function button i
n
P.T.Z Control Function Panel (refer to Figure6-2), PTZ camera starts
moving, when user releases it, PTZ camera stops moving.
Figure6-3 Speed Adjustment
Users can select different Pan Speeds, Tilt Speeds, Focus Speeds and Zoom
Speeds for P.T.Z. devices.
1. Pan Speed
Set horizontal rotating speed.
2. Tilt Speed
Set vertical rotating speed.
3. Focus Speed
Set camera focus speed.
4. Zoom Speed
Set zoom in/ zoom out speed.
Click and a pop-up window will appear; users can choose different
presets or group sets.

Error! Use the Home tab to apply
1 to the text that you want to
appear here. Error! Use the Home
tab to apply 1 to the text that
you want to appear here.
42
Figure6-4 Preset and Group Select
Click to set Preset point and change Preset point name. Every
Group includes multiple Preset points. If users select preset1, preset2 and
preset3 for group1, preset1, preset2 and preset3 will be automatically
accessed in sequence after users select group1 for auto scout.
Figure6-5 Preset
Click , the following pop-up window will appear:
Dwell: users can set the dwell time of a preset here.
Figure6-6 Group Configuration

Error! Use the Home tab to apply
1 to the text that you want to
appear here. Error! Use the Home
tab to apply 1 to the text that
you want to appear here.
43
7
Record Search & Playing Back
Click in the SuperDVR Main Display Interface (refer to Figure4-1) and
access the following areas:
Figure7-1 Search and Playback Interface
This interface is divided into 4 parts, record search area, record playback area,
record play area, and other functions area.
Press and return to the live surveillance status.

Error! Use the Home tab to apply
1 to the text that you want to
appear here. Error! Use the Home
tab to apply 1 to the text that
you want to appear here.
44
7.1 Record Search
Figure7-2 Record Search Area
A, B and C marks the areas of the three search methods.
• A: Search by date
• B: Search in backup file and original file
• C: Search by recording mode. This is useful when user wants to look
through some important events.
Users can select one or more of the above three searching methods to search
for needed recorded files.
7.2 Playing Back and Control
Figure7-3 Playing Back and Control

Error! Use the Home tab to apply
1 to the text that you want to
appear here. Error! Use the Home
tab to apply 1 to the text that
you want to appear here.
45
Explaination of the button functions:
• : Play / Pause
• : Stop
• : Reverse. This button is valid when playing back by single channel
• : Previous Section. This button is valid when playing back by single
channel
• : Next Section. This button is valid when playing back by single
channel
• : Previous Frame. This button is valid when playing back by single
channel playing back in pause mode
• : Next Frame. This button is valid when playing back by single
channel playing back in pause mode
Users can select suitable playing speed in the area as shown below:
Figure7-4 Playing Speed Controller
The following area shows the recorded files of different channels:
Figure7-5 Recorded Files Browser
The upper bar shows the hours in a whole day. Click the bar, and it will be
magnified 10 times, therefore users can see the detailed time marks. When
searching for a certain section of the file, users can draw the scrolling-bar to
the area that most likely contains the needed section. If necessary, click the
bar once and see the magnified time marks for precise search.
The left side shows the available channels. When a certain channel has been
selected for playing back, the background color will be highlighted, or it’s dark
gray, and a tick sign will appear beside the channel title.
The main area at the center gives details of the recorded files. Different colors
of the bar show the different types of record modes of the files. The following

Error! Use the Home tab to apply
1 to the text that you want to
appear here. Error! Use the Home
tab to apply 1 to the text that
you want to appear here.
46
are the definitions of the color bars:
• Blue: Manual Record Events
• Green: Schedule Record Events
• Yellow: Motion Detection Record Events
• Red: Sensor Alarm Record Events
Click to play selected recorded files. The system offers playback in
1 Ch, 4CH, 9 CH, and 16CH. The following is the multiple channel playback
options in the control area:
Figure7-6 Multiple Channel Playback Control
The system default playiback mode is one channel. That is Camera1. If users
need to change to other channels, then click and the channel
configuration window will appear, as shown below:
Figure7-7 Channel Configuration Dialog for Single Channel Playback Mode
Users can select one channel from all the available channels for playing back.
In case user needs to playback 4 channels at the same time, then click ,
and the following channel configuration window will appear:
Figure7-8 Channel Configuration Dialog for 4-channel Playback Mode
Users can select any four channels from all the available channels for playing
back.
The system offers quick select methods for users. For example, by selecting

Error! Use t
he Home tab to apply
1 to the text that you want to
appear here. Error! Use the Home
tab to apply 1 to the text that
you want to appear here.
47
‘Third 4 Channels’ , Camera9, Camera10, Camera11, and Camera12 will be
quickly be selected simultaneously.
If user needs to playback 9 channels at the same time, then click , and
the following channel configuration window will appear:
Figure7-9 Channel Configuration Dialog for 9-channel Playback Mode
Users can select any 9 channels from all the available channels for playing
back. Users can also use the quick select methods in the system.
If user needs to playback 16 channels at the same time, then click , and
the following channel configuration window will appear:
Figure7-10 Channel Configuration Dialog for 16-channel Playing Back Mode
Then click ‘OK’ to play back.
TIP
Click any channel and magnify it to see the single channel. Click again to return to the
former playback mode.
7.3 Other Functions
7.3.1 Recorded File Backup
Click and enter the following menu:

Error! Use the Home tab to apply
1 to the text that you want to
appear here. Error! Use the Home
tab to apply 1 to the text that
you want to appear here.
48
Figure7-11 Recorded Files Backup
Users can select corresponding cameras and copy the recorded files to
another path in this area. This is the file backup function of the system.
The interface is divided into four areas:
• A: Camera Selection Area
• B: Time and Date Selection Area
• C: Operation Area
• D: Information Area
In A area, users can select one or more cameras.
In B area, users can set start time/date and end time/date, and then backup
the files recorded by channels selected in A area by the time interval.
In C area, users can set backup path.
Click ‘Start’ to backup files.
7.3.2 Delete Recorded Files
Click and the following window will appear:
Figure7-12 Delete Recorded Files
Users first select the channel on the left side, and then select start time/date
and end time/date of the recorded files, click ‘Start’ to delete files.

Error! Use the Home tab to apply
1 to the text that you want to
appear here. Error! Use the Home
tab to apply 1 to the text that
you want to appear here.
49
7.3.3 Capture Pictures
The definitions of the function buttons are shown below:
: Capture picture
: Print setup
: Print captured picture
NOTICE: This function is valid only in playback pause mode of
single channel
.
When in single channel playback pause mode, the following color control
panel (Figure7-13) will automatically appear, which can be used to make
picture quality adjustments for the present channel, including brightness,
contrast, saturation and hue, and press ‘Default’ to restore the original
settings.
Figure7-13 Color Control Panel
When in the single channel playback pause mode, click and the
following window will appear:
Figure7-14 Capture Multiple Images in Sequence

Error! Use the Home tab to apply
1 to the text that you want to
appear here. Error! Use the Home
tab to apply 1 to the text that
you want to appear here.
50
Select path and click ‘Save’ to save the picture. User can also print the
images that have been captured.
Click and display print setup as shown below:
Figure7-15 Print Setup
By clicking users can display print preview as shown below:
Figure7-16 Print Preview
Select and then click or to move the picture up, down,
left and right. Select and then click and to zoom in and
out on the image. Press to return to the original settings. Press
‘Print’ in the print preview window to print the image directly.

Erro
r! Use the Home tab to apply
1 to the text that you want to
appear here. Error! Use the Home
tab to apply 1 to the text that
you want to appear here.
51
7.3.4 Image Zoom in/out
When in single channel playback mode, the zoom control icons
will appear. Select and click on the channel, it will zoom out the image.
By clicking continuously, the image will be zoomed out continuously. Select
and do the some operation to get the opposite effect. Click and
recover the original size. Take the following three pictures for example.
Figure7-17 Example: original size
Figure7-18 Example: zoomed out

Error! Use the Home tab to apply
1 to the text that you want to
appear here. Error! Use the Home
tab to apply 1 to the text that
you want to appear here.
52
Figure7-19 Example: zoomed in

Error! Use the Home tab to apply
1 to the text that you want to
appear here. Error! Use the Home
tab to apply 1 to the text that
you want to appear here.
53
8
Remote Surveillance & Playback
Remote Live Surveillance
Surveillance system supports Remote Surveillance through LAN, Internet,
and Intranet. Simply enable the Webcam function of the system on a
computer which is connected to the Internet, and the computer system will
become an Internet Webcam server. On any other computer that connects to
Internet, input the public IP server address in IE browser (see 7.2.1 Finding
Router’s Public IP Address), the end users can get high quality real time
image from the server (depending on available bandwidth) and also control
the P.T.Z devices.
8.1 Remote Surveillance Server Configuration
Users should first enable the Web Camera Services in Basic Configuration
(refer to Fig 7.1) and set other settings as shown below:
Fig 7.1 Webcam Server Configuration
HTTP Port
Web service & download service port, default value is 80.
Data Port
Data transmission port, default value is 1159.
Command Port
Control command port, default value is 1160.
Picture Quality
Default value is medium.
If your internet connect does not have enough bandwidth available you can
use the Picture Quality option to send the video over the internet at a lower
quality setting then you are using for recording. That way you will be able to
see the images over the internet at lower quality while still recording at the

Error! Use the Home tab to apply
1 to the text that you want to
appear here. Error! Use the Home
tab to apply 1 to the text that
you want to appear here.
54
higher quality setting.
8.2 Setting up Router for Internet Access
To access the dvr card over the internet you would need to forward ports 80,
1159, and 1160 on the router that you have the PC with the DVR card
installed attached to, to the IP address of the PC that has the card installed.
Notice: If you cannot use one of the HTTP ports, such as 80 because it is being
used by another program, or it is being blocked by your service provider, you
can use another port in the same range. If you do so then you need to forward
the IP address of the router to the other port, change the port in the SuperDVR
settings, and you need to add the port number after the IP address. For
example, if you set the HTTP port as 82, you need to enter the IP address as
192.168.0.25:82.
User name and password here are the same as that used on the DVR. The
default is admin and 123456.
To get the IP address of the PC go to the start button, then click on run, then
type cmd into the box and click ok. At the blinking cursor type in ipconfig. The
box will now display the IP address of the computer and the default gateway,
which is the IP address of the router. See Figure 7.2

Error! Use the Home tab to apply
1 to the text that you want to
appear here. Error! Use the Home
tab to apply 1 to the text that
you want to appear here.
55
Fig 7.2 ipconfig window
8.2.1 Port Forwarding
To forward the ports you would need to access the router program by opening
an internet browser and typing the default gateway address into the address
bar and hitting enter. How you would forward the ports in the router depends
on the brand and model of router you have. If you do not have the instructions
for your router you can go to the website www.portforward.com which has
instructions on how to do this for most popular routers. On the first page click
on the orange Routers link, red square in Fig 7.3.
Fig 7.3 Port Forward Router link
then select your router from the list, then on the second page click on the
orange Default Guide link, blue box in Fig 7.4

Error! Use the Home tab to apply
1 to the text that you want to
appear here. Error! Use the Home
tab to apply 1 to the text that
you want to appear here.
56
Fig 7.4 Port Forward Default Guide link
and it will give you instructions for your router.
8.2.2 Finding Router’s Public IP address
Once the ports are forwarded you need to get the internet IP address of the
router since this is the address you will enter into the address bar of the router
on the remote computer to access the DVR card. To get this address go to the
website www.myipaddress.com on the computer where the card is installed.
The box shown as Fig 7.5 will appear on the website with the router’s public
IP address where 76.254.183.54 is displayed. Your address will obviously be
different.
Fig 7.5 myipaddress window
When you enter this address into the browser window on the remote
computer it will access the Webcam program, just click on the remote
surveillance option and it will install the program on the remote computer.
Once it is installed it will create an icon on the desktop that you can click on to
access the program in the future.

Error! Use the Home tab to apply
1 to the text that you want to
appear here. Error! Use the Home
tab to apply 1 to the text that
you want to appear here.
57
8.2.3 Dynamic Domain Name Services
You can access the DVR card through Internet Explorer from a static or
dynamic IP address; however a dynamic address can change from time to
time. How often depends on your service provider. When it changes you need
to go to back to a website such as www.myipaddress.com from the computer
with the DVR card to find out what the new IP address is. There are two
solutions to this problem. One would be to get a static IP address from your
service provider so that you do not have to be concerned with the address
changing. Another solution would to use a dynamic domain name service to
get a domain name that can be linked to your dynamic IP address. You can
register on our support site: myq-see.com and create a domain name, then
download the client software program and install it on the computer. This
software will monitor your IP address, and when it changes it will link the
domain name you created to whatever the current dynamic IP address is, so
that you do not have to be concerned with the address changing and
preventing you from accessing the DVR card. This service is provided free of
charge to our customers.
8.2.4 To Access through Internet Explorer
Once you have setup the network settings on the DVR to match the settings
of your router and forwarded the ports needed by the DVR (for remote access
over the internet), you need to modify your browser controls. You need to
allow Pop-ups. To do so go to the Internet Explorer tool bar and select the
"tools" option (RED box in Fig 7.6), then select the "Pop up Blocker" option
and select "Turn Off Pop-up Blocker” (BLUE arrows in Fig 7.6). You will also
need to enable Active X controls. To do so go to the Internet Explorer tool bar
and select the "tools" option, then "Internet Options"(GREEN arrow in Fig 7.6),
In the windows that opens (Fig 7.7) Go to "Security" (RED box in Fig 7.7),
then click the "Custom Level" button (GREEN box in Fig 7.7), then click on
OK (BLUE arrow in Fig 7.7). This will open the page shown in Fig 7.8. On this
page scroll down to the ActiveX Controls and Plug Ins and make sure they are
all set to either prompt (RED arrows) or enabled (BLUE arrows).

Error! Use the Home tab to apply
1 to the text that you want to
appear here. Error! Use the Home
tab to apply 1 to the text that
you want to appear here.
58
7.6 Inte
rnet Explorer Tool Bar
Fig 7.7 Internet Options Fig 7.8 Security Settings
NOTICE: If you still cannot connect after enabling ActiveX, on many
systems you many have another option. You can go into internet options
in Internet Explorer, enter the IP address you use to access the DVR as a
trusted site, then go to the default level button and set move the bar
down to the low setting, click apply and ok. Do not select the option to
enable protected mode or require server verification. On Vista you may
get an “unknown publisher or publisher can’t be verified” error message.
If you get one of these messages you need to go to the advanced tab,
down to the security settings, put checkmarks in the options to allow
active content to run on my computer, and allow software to run or install
even if the signature is invalid, and remove the check for the option to

Error! Use the Home tab to apply
1 to the text that you want to
appear here. Error! Use the Home
tab to apply 1 to the text that
you want to appear here.
59
check for signatures on downloaded programs.
To connect to the DVR from the remote computer you would then open an
Internet Explorer browser window and enter the internet IP of your router that
you got by going to www.myipaddress.com.
8.2.5 Unknown Publisher or Unsigned Program Error
If you get a error message that says the program cannot load because the
publisher is unknown or the program is unsigned, go to Internet Explorer,
Tools, Internet Options (refer to Fig 7.9), then go to the “Advanced” tab (RED
box in Fig 7.9), this will open the window in Fig 7.10, scroll down to “Security”,
and select the options to “Allow software to run or install even if the signature
is invalid”, and “Allow Active Content to Run Files on My Computer” (RED box
in Fig 7.10).
Fig 7.9 Advanced Options Fig 7.10 Invalid Signature
8.3 Accessing IE client
After enabling network server on the unit, and enabling ActiveX, users can
view the video from the cameras over the LAN or Internet through Internet
Explorer. Please refer to Fig7.1 IE client Server Configuration. This unit only
supports Internet Explorer browser, no other browsers are supported. It also
supports Win2000, WinXP and Vista.

Error! Use the Home tab to apply
1 to the text that you want to
appear here. Error! Use the Home
tab to apply 1 to the text that
you want to appear here.
60
Input the IP address of the computer with the card if accessing from LAN, or
the public IP address of the router if accessing from the internet, into the
Internet Explorer window to reach the window that prompts you to install the
ActiveX control, then the following window appears:
Fig 7.11 Webcam install interface
Click install button, then the Webcam main interface will appear as shown
below:
Fig 7.12 Webcam Login interface
NOTICE: The default User name is SYSTEM with no password. Users
can set user name and password on the program. Click and then
enter into the Webcam Main interface.

Error! Use the Home tab to apply
1 to the text that you want to
appear here. Error! Use the Home
tab to apply 1 to the text that
you want to appear here.
61
Fig 7.13 Webcam Main interface
Feature Explanations:
Icon Description
Controls for PTZ Cameras: Move Up. Move
Down. Move Left rotate left. Move Right. Stop
Rotating.
PTZ 'Focus' buttons. Click button 'Focus' farther
away. Click button 'Focus' closer
PTZ 'Zoom' buttons. Click button Move camera in
closer. Click button Move camera further away.
PTZ 'Iris' button. Click button Increase the amount
of light. Click button Decrease the amount of light.
Go to a Preset Point
Set a Preset Point
Speed dome. Adjust PTZ speed. It sets the
rotational speed of the PTZ

Error! Use the Home tab to apply
1 to the text that you want to
appear here. Error! Use the Home
tab to apply 1 to the text that
you want to appear here.
62
Single channel with full screen display
Four channel mode - four cameras displayed
Contrast adjustment
Brightness adjustment
Hue adjustment
Saturation adjustment
Log in/ Log out
Record playback
System Configuration
Enable the Lan that is Master stream, has higher
frame rate and needs higher network bandwidth;
Internet that is sub stream, has low frame rate and
requires lower network bandwidth. Users can select
the stream according to their bandwidth.
Table 7-1 the function of the main interface buttons
Click the right mouse in the main interface a sub menu will appear:
Open Stream: Click this item, selected channel will open
Close Stream: Click this item, selected channel will close
Close All: Click this item, all channels will close
Full Screen: Select this item, the picture will display full screen. Double click
or click right mouse to return to the previous interface.

Error! Use the Home tab to apply
1 to the text that you want to
appear here. Error! Use the Home
tab to apply 1 to the text that
you want to appear here.
63
8.4 Remote playback
8.4.1 Record playback and control
Click button on the Webcam main interface, the remote playback
interface will appear:
Fig 7.14 Remote playback
Explaination of the button functions:
: Play/ Pause
: Stop
: Adjust the speed of playing back. Users can ajust play speed as
needed.
: Playing back backup. Users can click Backup to enter into the Remote
Backup interface:

Error! Use the Home tab to apply
1 to the text that you want to
appear here. Error! Use the Home
tab to apply 1 to the text that
you want to appear here.
64
Fig 7.15 Remote backup
STEP1 Select the date, channel, then click Search button. It will list all files
recorded for the day.
STEP2 Click Browse button, set the saving path.
STEP3 Select files in the search area. Users can hold shift button on the
keyboard and select multi files with mouse simultaneously.
STEP4 Click Backup button to do remote backup.
Notice: the backup files are AVI format. Users can play with most third
players directly.
Click the right mouse in the search area, a sub menu will appear:
If users select all channels, click Select all, then all check boxs before
channels will be selected. Users can click Clear all to clear all selected
channels; if users select a certain channel, click Select this channel, then just
this channel be selected. Users can click Clear this channel to clear that
selected channel.
: Return to previous main interface
: Multiple Channels playback control
The system default playback modes are single and four channel. If users
need to change to other channels, then click button, the following

Error! Use the Home tab to apply
1 to the text that you want to
appear here. Error! Use the Home
tab to apply 1 to the text that
you want to appear here.
65
channel configuration window will appear:
Fig 7.16 Channel configuration window for 1 channel playback mode
Users can select one channel from all the available channels for playing back.
Click , users can playback in four channel mode. Four channel
configuration window will display as shown below:
Fig7.17 Channel configuration window for 4 channel playback mode
Users can select any four channels from all the available channels for playing
back.
The following area shows the recorded files of different channels:
Fig 7.18 Data Preview
Data preview shows the recorded data for different channels during
corresponding time, the left side shows the available channels. When a
certain channel has been selected for playing back, the background color will
be highlighted, or its dark gray and a tick sign will appear beside the channel
title.
The data preview area at the center gives details of the recorded files.
Different colors of the bar show different types of records. The following are
the definitions of the color bar:

Error! Use the Home tab to apply
1 to the text that you want to
appear here. Error! Use the Home
tab to apply 1 to the text that
you want to appear here.
66
: Manual Record Events
: Schedule Record Events
: Motion Detection Record Events
: Sensor Alarm Record Events
The ruler on top of the bar shows the hours of the day. Right-click the ruler, it
will be magnified 10 times allowing users to see the time marks more clearly.
STEP1 When users want to search for a certain section of a record, draw
the bar to the desired position. If necessary, right-click the bar to see the
magnified time marks for precise search.
STEP2 Users can click button to play the selected record, Then
return to live display mode after finishing remote playback, it will display a
word ‘Connecting…’on the screen. And users may click “Large Picture” or
“Quad Picture” button to refresh the screen to get live picture.
8.5 System setup
Click and enter into the main setup interface.
Fig 7.19 Basic Configuration
Notice: When multiple clients access the system configuration interface
simultaneous, the user who enters into that interface first gets priority
and then others will not be able to access it.

Error! Use the Home tab to apply
1 to the text that you want to
appear here. Error! Use the Home
tab to apply 1 to the text that
you want to appear here.
67
8.5.1 Basic Configuration
Fig 7.20 Basic setup
1. Caption
There are four options: None, ID, Name and ID/Name to select from.
None means no title or name.
ID means camera numbers, i.e.1,2,3 and so on.
Name means camera names,i.e.Cam1, Cam2 and so on.
ID/Name means both camera number and camera name,i.e.1/Cam1,
2/Cam2 and so on.
2. Live audio
Supports one channel of microphone audio input signal on the PC
motherboard and audio inputs on the card if it has any. Users can choose the
video channel to associate with these audio signals.
In the following area in the basic configuration page, users can input the
computer user name and password in the related boxes. Then when
restarting the computer system, it will access to the system with the user
name and password input in these boxes.
Fig 7.21 Computer System Reboot Setup
As the Windows system may become unstable after a couple of days of
continuous operation. It may cause the SuperDVR system to become
unstable. The software supports auto-reboot. Select and set the
interval by day, which will guide the system to reboot automatically according
to the setups.
3. Alarm setup

Error! Use the Home tab to apply
1 to the text that you want to
appear here. Error! Use the Home
tab to apply 1 to the text that
you want to appear here.
68
The Alarm setup configuration is show below:
Fig 7.22 Alarm triggering configuration
Option Explanations:
1. Buzzer
Users can select whether to sound the computer buzzer if the alarms have
been triggered also select how long the buzzer sounds.
2. Full screen alarm
Users can select whether channel will be full screen when alarm triggered.
Set the full screen hold time here
3. Pre-alarm record
Users can select whether to enable alarm pre-recording and also pre-record
time
This option is for users to see remote live view.
4. Disk storage alarm
If the Partition’s free space is less than the assigned percentage, it will stop
recording or recycling, but give alarm tips according to the settings
5. Motion holding time
The continuous recording time after motion stopped
6. Sensor holding time
The continuous recording time after sensor stopped
8.5.2 Camera setup
Click and the camera setup configuration will appear as shown below:

Error! Use the Home tab to apply
1 to the text that you want to
appear here. Error! Use the Home
tab to apply 1 to the text that
you want to appear here.
69
Fig 7.23 Camera setup configuration
1. Title
Channel name. Users can set the channel name from Cam1, Cam2, Cam3
and Cam4.
2. Camera security
Users are divided into two standards: normal user and super admin. By
selecting this option, only administrator can see corresponding channels.
3. Time stamp
If selecting the check box, record time will be displayed on the screen when
playing back the record.
4. Net quality
There are five options to choose from: lowest, lower, medium, higher and
highest. The higher the picture quality is, the clearer the picture is, but the
more bandwidth it takes to transmit the files.
5. Audio in
If users select the check box, Webcam will record audio along with the video.
Otherwise, it will not record audio.
Notice: The default setting is that Audio input1 matches channel1 and
Audio input2 matches channel2
By clicking , users can copy the setting of this channel to any other
selected channel.
8.5.3 Schedule configuration
Click the icon to enter the Schedule Configuration page as shown below:

Error! Use the Home
tab to apply
1 to the text that you want to
appear here. Error! Use the Home
tab to apply 1 to the text that
you want to appear here.
70
Fig 7.24 Schedule configuration
There are three kinds of recording modes: manual record, schedule record,
motion detection/Sensor alarm record. Users can set schedules from Sunday
to Monday separately for all of the three recording modes. Sensor alarm
recording mode has the highest priority of the options.
When users need to edit the schedule for a channel, select the camera name
in the left Camera group first.
Click icon and brush on the weekday schedule to add time; click icon
and click on the weekday schedule to delete time.
By clicking , users can copy the setting of this channel to any other
selected channel.
8.5.4 Alarm configuration
Click icon to enter into alarm configuration as shown below:
Fig 7.25 Alarm configuration
Users can set the alarm type: Motion and other. There are two alarm out
options to choose from: Buzzer and Auto mail.
1. Buzzer

Error! Use the Home tab to apply
1 to the text that you want to
appear here. Error! Use the Home
tab to apply 1 to the text that
you want to appear here.
71
Enable buzzer on board for alarm
2. Auto mail
When alarm is triggered, the system will send an email to users automatically.
By clicking , users can copy the setting of this channel to any other
selected channel.
8.5.5 Record configuration
Click icon and enter into record configuration interface as shown below:
Fig 7.26 Record configuration
1. Record setup
Fig 7.27 Record setup
Users can set three kinds of recording modes:
Manual record
Schedule record
Motion record

Error! Use the Home tab to apply
1 to the text that you want to
appear here. Error! Use the Home
tab to apply 1 to the text that
you want to appear here.
72
Users can use multiple cameras to record, every camera works separately
and recorded files are also saved separately.
a. Record quality
There are five quality options to select from: lowest, lower, medium, higher
and highest. The higher the record quality is, clearer the recorded image is
and the more hard space the recording takes up.
b. Manual record
By selecting this option, the selected camera image will be recorded and
saved all the time.
c. Schedule record
By selecting this option, the selected camera image will be recorded
according to the times you setup on the schedule.
d. Motion record
By selecting this option, users can set selected channels to record when there
is motion detected in front of the camera.
2. Storage disk
Fig 7.28 Storage disk
Users can store recorded files by selecting storage disk. By checking the
Recycle check box, users can setup the software to continue recording after
the hard drive is full by recording over the oldest files on the hard drive.
By clicking , users can copy the setting of this channel to any other
selected channel.
8.5.6 Motion configuration
Click icon to access the motion configuration interface as shown below:

Error! Use the Home tab to apply
1 to the text that you want to
appear here. Error! Use the Home
tab to apply 1 to the text that
you want to appear here.
73
Fig 7.29 Motion configuration
Definition of the setup items:
1. Sensitivity
Users can set motion detection sensitivity here.
2. Speed
Motion detection speed
3. Block number
Set grid’s number
4. Select all
Select all the areas of the channel as detection area
5. Clear all
Clear all the detection areas and then users can select customized
detection areas using mouse curser.
By clicking , users can copy the setting of this channel to any
other selected channel.
8.5.7 EMAIL Configuration
Click icon to access to Email configuration interface:

Error! Use t
he Home tab to apply
1 to the text that you want to
appear here. Error! Use the Home
tab to apply 1 to the text that
you want to appear here.
74
Fig 7.30 Email configuration
1. Mail server setup
Fig 7.31 Mail server setup
In this area, users can set receiver and sender’s E-mail SMTP server and
address. Note: the address of receiver and sender can be the same.
Relative Definitions:
Smtp server: Sender’s SMTP, such as smtp.yahoo.com
User name: Sender’s User Name
Smtp port: Mail server’s port, the default value of mail server is25.
Password: Sender’s Password
Users can select My server requires a secure connections’ or My
outgoing server SMTP requires authentication check box according to
server mail service policy of mail service supplier.
2. Mail setup
Fig 7.32 Mail setup

Error! Use the Home tab to apply
1 to the text that you want to
appear here. Error! Use the Home
tab to apply 1 to the text that
you want to appear here.
75
Function Definitions:
Send to: Receiver’s E-mail Address
E-Mail from: Sender’s E-mail Address
Subject: E-mail Subject
Users can select Set Mail Internal check box to set email send time, such as 5
seconds, 10 seconds and so on.
3. Attachment setup
Fig 7.33 Attachment setup
Enable ‘Attachment’, then the image that triggered the alarm will be sent to
appointed mailbox when an alarm is triggered.
Function Definitions:
Camera: Channel Name
Time: Display Time
Format: Image Format
Resolution: Cif and QCif
8.5.8 P.T.Z Configuration
Click icon to enter into the P.T.Z configuration as shown below:
Fig 7.34 P.T.Z Configuration

Error! Use the Home tab to apply
1 to the text that you want to
appear here. Error! Use the Home
tab to apply 1 to the text that
you want to appear here.
76
1. Protocol setup
Fig 7.35 P.T.Z Protocol setup
A. Protocol
Communication protocol of P.T.Z device
B. Port
Users can set serial port number
C. Address
Communication address of P.T.Z device (ID number)
2. Serial port setup
Users should first enable the P.T.Z control function of selected camera and
select a port number in P.T.Z Protocol Setup (refer to Fig7-30), and then set
corresponding parameters in the area below:
Fig 7.36 P.T.Z Serial port setup
A. Port
Users can set port number
B.Baud rate

Error! Use the Home tab to apply
1 to the text that you want to
appear here. Error! Use the Home
tab to apply 1 to the text that
you want to appear here.
77
Set P.T.Z device Baud rate, default value is 9600, used value must match
Baud rate on PTZ control board
C.Data bits
Default value is 8, used value much match Baud rate on PTZ control board.
D.Parity
Odd and even parity bit, default Null, used value must match Baud rate on
PTZ control board
E.Stop bits
Default value is 1, used value must match Baud rate on PTZ control board
Notice: Users should look into the P.T.Z device and get Baud rate,
Protocol and Address first, and then set other values accordingly.
By clicking , users can copy the setting of this channel to any other
selected channel.
8.6 Mobile Surveillance
8.6.1 Introduction to Mobile Surveillance
This DVR supports mobile surveillance by smart phones and PDAs with Win
Mobile Pro or Symbian operating systems that are on 3G networks. Among
these, Dopod D600 (WM5) and Dopod S1(WM6) have been tested and fully
certified that they worked well with the DVR.
You need to setup the network configuration on the DVR before you can
access mobile surveillance (Please see Chapter 7.1 Remote Live
Surveillance). The following are the instructions for the two operating
systems.
Notice: Mobile devices can only access one channel at a time.
8.7 By Smart Phone with Win Mobile Pro or Classic
Operating System
Please use smart phones or PDAs with WinCE version supported by this unit.
STEP1 First, activate the network access on the mobile phone, and then
run “Internet Explorer”.
STEP2 Input the public IP address you need to use to connect as shown
below:

Erro
r! Use the Home tab to apply
1 to the text that you want to
appear here. Error! Use the Home
tab to apply 1 to the text that
you want to appear here.
78
STEP3 Click on the software name. A dialog box will pop up.
STEP4 Click “Yes” to download and install.

Error! Use the Home tab to apply
1 to the text that you want to
appear here. Error! Use the Home
tab to apply 1 to the text that
you want to appear here.
79
STEP5 PCam will be opened after installed.
STEP6 Input the server’s address, ID, and password respectively in the
columns of “Server”, “User”, and “Password”. Then click “Go” to login to the
DVR. It will show the picture if accessed successfully.
STEP7 Camera 1 is the default display after login. Change the camera in
the drop down menu of “Channel”.

Error! Use the Home tab to apply
1 to the text that you want to
appear here. Error! Use the Home
tab to apply 1 to the text that
you want to appear here.
80
Notice: User name and password here are the same as that used on the
PC. The defaults are user name “SYSTEM” with no password.
8.8 By Smart Phone with Symbian Operating System
Please use smart phones or PDAs with Symbian version supported by this
unit.
STEP1 First, enable the network access on mobile phone, and then run
Web browser.
STEP2 Input the DVR server’s IP address in a new-built bookmark) Click
this bookmark to connect with the DVR.
STEP3 A welcome window will pop up with a link to download the software.
Click “install package” to download.

Error! Use the Home tab to apply
1 to the text that you want to
appear here. Error! Use the Home
tab to apply 1 to the text that
you want to appear here.
81
STEP4 The security window will pop up after downloaded and ask if you
want to install the package. Click YES to install.
STEP5 A Scam shortcut icon appears on the system menu after finished.
STEP6 Run Scam program.

Error! Use the Home tab to apply
1 to the text that you want to
appear here. Error! Use the Home
tab to apply 1 to the text that
you want to appear here.
82
STEP7 Click Options--->Settings to enter login interface.
STEP8 Input the server’s address, ID and password respectively. Then
click OK to login to the DVR. (See 4.1.2 Accessing the DVR over the
Internet)

Error! Use the Home tab to apply
1 to the text that you want to
appear here. Error! Use the Home
tab to apply 1 to the text that
you want to appear here.
83
STEP9 It will show the camera after accessing successfully.
Notice: User name and password here are the same with that used on
the PC. The defaults are user name “SYSTEM” with no password
Note: By default, if the mobile phone doesn’t do anything for 10 seconds,
the back light of phone screen will be shut down in which causes great
inconvenience to users wanting to view site images for a long time, so
you probably want to change the back light settings to give you longer
viewing time.

Error! Use the Home tab to apply
1 to the text that you want to
appear here. Error! Use the Home
tab to apply 1 to the text that
you want to appear here.
84
8.9 Accessing From iPhones
At present, the software only supports iPhone os2.2 and above, if phone
firmware is lower than this version please upgrade it.
Step1 Go to the App Store function of iPhone
Step 2: Enable “search” function to search for “SuperCam”, the
available programs will be displayed on the top of search box
Step 3: Click SuperCam, enter into “introduce” interface and click FREE”, it
will change into “INSTALL”

Error! Use the Home tab to apply
1 to the text that you want to
appear here. Error! Use the Home
tab to apply 1 to the text that
you want to appear here.
85
Step 4: Enter into iTunes Store password, click “OK” the below interface will
display.
Note: if this is the first time the user is using this feature you will need to enter
user ID; if there is no Store account, user need to apply for one.
Step 5: Download and install. After installed, SuperCam icon will display. Click
this icon, a function interface will appear as shown below.

Error! Use the Home tab to apply
1 to the text that you want to
appear here. Error! Use the Home
tab to apply 1 to the text that
you want to appear here.
86
Step 6: Click “System setting”, to enter into login interface. Enter server’s IP
address (or domain name), user’s ID and password. Click Back to save.
Step 7: Click Live View, the default Cam1 picture will be displayed. Click
to capture picture. Click to enter PTZ mode.

Error! Use the Home tab to apply
1 to the text that you want to
appear here. Error! Use the Home
tab to apply 1 to the text that
you want to appear here.
87
Step 8: On function interface, click Image View to view the captured picture.
Click or to switch to next or previous picture. Click to delete the
current picture.
Iphone help
Pic1 Pic2 Pic3 Pic4

Error! Use the Home tab to apply
1 to the text that you want to
appear here. Error! Use the Home
tab to apply 1 to the text that
you want to appear here.
88
Live View
After successfully installing SuperCam software, Click on System Setting (Pic
1), and then enter Server IP address or Domain, User name and password to
log in (Pic 2). If you connect successfully, it will go to Live View of CH1 as
default (Pic 3), You can choose other desired channels from channel button
underneath. Other functions are:
1. : switch channels
2. : picture snap.
3. : ptz control (if server camera is PTZ Camera only) (pic 4)
PTZ Control buttons:
1 : pan
2 : Zoom Zoom in Zoom out
3 : Focus. Long Focus Short Focus
4 : IRIS Lighter Darker
5 : return to live
Image View

Error! Use the
Home tab to apply
1 to the text that you want to
appear here. Error! Use the Home
tab to apply 1 to the text that
you want to appear here.
89
Pic 5 Pic 6
1. : Previous picture 2. : Next Picture
3. : The first Picture 4. : The last picture
5. : Delete 6. : Search Pictures, search page as Pic 6

90
Appendix1
Frequently
Asked Questions
Appendix 2.1 Installation
Appendix 2.1.1 Cannot Install the SuperDVR Driver
Possible causes:
• H.264 series capture card has not been installed. Before installing driver,
users should install capture card hardware in the PCI slot in the computer
case before installing the SuperDVR program.
• H.264 series capture card has not been installed correctly. Please unplug
the card and install it again or change to another PCI slot, preferably next to
the slot it was originally installed in.
• The card is not compatible with the PC system.
Appendix 2.1.2 Can’t find H.264 series Devices in Device Manager
Enter the Device Manager and cannot find corresponding H.264 series
Devices, the possible cause may be:
• Windows system error. Restart computer.
• Problem with H.264 series card. Replace the card.
• Install SuperDVR to see if it finds card and installs the driver.
Appendix 2.2 How to Use SuperDVR
Appendix 2.2.1 Meanings of the indicator lights
• Grey- Normal state
• Red - Sensor alarm
• Yellow - Motion detection alarm
• Blue - Video loss
• Light Green - Manual record state
• Dark Green - Schedule record state
•
NOTICE
:
Users can refer to
Figure4
-
6
to learn more.
Appendix 2.2.2 How do the different record modes work?
Users can set more than one record mode in Record setup (refer to
Figure4-5), but actually, there is only one valid record mode for recording.
The priority order of the recording modes is: Sensor Alarm Record > Motion
Detection Record > Manual Record > Schedule Record

91
Appendix 2.2.3 How to set recycling record mode on the system
Select ‘Recycle’ in basic configuration, refer to Figure5-1.
Users can select the percent of used disk space to set up “disk shortage
alarm.” You can input percent manually or choose the selectable options such
as, 25%, 50%, and 75% to set up. For example, if selecting 50%, an alarm will
warn you when your disk space usage reaches 50%.
TIP
It is recommended that you install SuperDVR onto the partition with your Windows
system (normally C:), and save recorded files on a different partition: .
Appendix 2.2.4 How to set auto reboot function
When a Microsoft Windows system runs continuously for a couple of days the
system may become unstable; therefore, it is suggested you restart the
computer every few of days.
In the basic configuration (refer to Figure5-1), input Windows user name and
password (It is not SuperDVR user name and password), and select time
interval, then the Windows system will automatically restart according to the
set time.
If the Windows system shutdown unexpectedly, i.e. power supply is cut off,
when computer reboots, SuperDVR system will automatically restart, and
keep the settings you have entered.
TIP
Users do not need to enable auto reboot function, but it’s suggested to input the
Windows user name and password in the relative area, therefore when the system shuts
down unexpectedly, users don’t need to input Windows and SuperDVR user names and
passwords.
Appendix 2.2.5 How to quickly setup the schedule record function
Press ‘Shift’ or ‘Ctrl’ key, and draw the cursor in corresponding areas to make
schedules for multiple channels.
Appendix 2.2.6 What are the byte rates for different image qualities from
highest to normal?
The frame rate is 30 fps, bit rate for the highest image quality is about
1.2MByte/s, and for the lowest image quality is about 50KByte/s.
Appendix 2.2.7 The frame rate seems to be lower than what I set
There is frame loss in image switch therefore the real recording frame rate is
relatively lower than the theoretic value.
Appendix 2.2.8 Why can’t I select more channels to backup?
Please draw the mouse in the channel selection area, or utilize Shift and Ctrl
key for assistance.

92
Appendix 2.3 How to Use Network Function
Appendix 2.3.1 How to monitor on the client-side
First enable ‘Web cameras service’ in basic configuration (refer to
Figure5-1).
Input the server Internet address in IE browser on the client-side, and the
necessary webcam driver will be downloaded automatically, then users need
to install the driver. After accessing the webcam main interface, click ‘Login’
and input user name and password to log in the system. (Refer to ‘Error!
Reference source not found. Error! Reference source not found. to learn
more)
Appendix 2.3.2 Why can’t I download the client-side software?
The possible causes:
• The client-side computer is not properly connected to Internet or LAN.
• The server-end has not enabled ‘Web Camera Service’.
• The default Http port is 80. It may be conflict with other Web servers, for
example IIS. If so, please change to another port (please see section 7.2)
• Windows XP SP2 will block the OCX download. You should enable
‘Internet Option Security Settings Download unsigned ActiveX controls’
(please see section 7.2.3).
Appendix 2.3.3 Why can’t the server be configured at the client-side?
The possible causes:
• It cannot be configured at the client-side, when the server is being
configured at the server-end.
• Only the last configuration is valid if different configurations are deployed
simultaneously.
Appendix 2.3.4 Why can’t I see the images?
The possible causes:
• The VGA card is too outdated or does not have enough Video RAM.
• You need to install a newer version of DirectDraw.
• SuperDVR cannot run on a version of Windows before Win2000.
• Data port or command port is conflicting with other network services
(please see section 7.2)
• The user is connected to Internet through LAN, and the network
administrator has not enabled corresponding data port or command port.
• The client-side has installed firewall software that may stop video
transmission.
• H.264 codec has not been installed properly, please download new
version of Webcam (newer version of SuperDVR).
• Slow network speed.

93
Appendix 2.3.5 What should I do if the Internet speed is quite slow?
The more channels opened, and the slower the video transmission speed,
therefore try to use one channel display mode when the network speed is
slow.
TIP
There may be some surplus channels that have no video input. Switching off the channels
will help to improve transmission speed. (Refer to ‘5.1 Basic Configuration’ about
switching on/off channels.)
Appendix 2.3.6 Why can’t I start Webcam server or RPB server?
Possible causes:
Other software is using these ports. If so, please change Webcam ports
configuration or stop other software.
Appendix 2.3.7 How much hard drive space do the recorded files take
up?
To use the table below, find the picture quality setting you are using and
multiply the used space figure by the number of cameras you are recording.
Divide the result into the amount of hard drive space available and you will get
the number of hours you can record on the available hard drive space.
Example using medium quality with 4 cameras with 200GB available:
48.12MB X 4 Cam = 192.48MB/HR, 200GB/192.48 = 1064 HRs = 44 days
Hard Drive space required per hour for each channel
Frame
rate
resolution
picture
quality
Used Space(MB/hour
)
30fps 640*480 highest 93
30fps 640*480 higher 67.44
30fps 640*480 medium 48.12

94
30fps 640*480 lowest 10.92
Appendix 2.4 Other Questions
Appendix 2.4.1 Why doesn’t the computer display work, or why can’t I
access Window system?
The capture card may not be well installed. Unplug the card and try it again.
NOTICE
:
Please unplug the power plug of the computer
before
re-installing the card to avoid damaging the motherboard chip set.
Appendix 2.4.2 Why I can’t find the recorded files?
You do not have enough hard drive space available for recording.
Appendix 2.4.3 Why is the screen’s display unstable with dithering and
water-wave images?
Possible causes:
• Camera does not have enough power
• There is external electromagnetic disturbance, or electrostatic disturbance
on camera’s BNC connector (It is suggested you connect ground wire to the
connector).
• You may need to update the driver for the video card on the system.
• Problem with the video card. Try reinstalling the video card, or changing
the video card.
Appendix 2.4.4 Why does it delay playing back, and why is it slow to
close and open the driver?
Possible causes:
• Problem with the Windows system. Try rebooting the computer.
• There are too many recorded files or too many fragments on the HDD,
therefore it takes time to search for the files, you need delete the files that you
don’t need, or need to run disk defragmenter.
• Capture card problem.
• Computer hardware system is too outdated (processor too slow, not
enough memory, or not enough free space on hard drive).

95
Appendix 2.4.5 Why can’t I play back?
Windows Media Player has been damaged, or decoder has not been installed
properly. It is suggested you reinstall the player program or download a codec
pack from K-lite
(http://www.free-codecs.com/download/K_lite_codec_pack.htm) or
www.divx.com.
Computer problem, recorded files have been damaged. It is suggested to fix
these files using SuperAVIFix program.
Appendix 2.4.6 Why do I see some gray blocks on time progress bar
area when playing back?
Possible causes:
• User has deleted these recorded files.
• SuperDVR has deleted recorded file when recycling hard drive space.
• Recorded files cannot be opened because the recording is on.
Appendix 2.4.7 Why could I see some old recording sections that
weren’t available for play back?
Possible causes:
• You previously selected disk partitions different from the current partitions.
• Database of recorded log was damaged.
• You have installed SuperDVR on different directories.
Appendix 2.4.8 Precautions on changing system time
• The SuperDVR system provides the retrieving mechanism for video files,
which must take the system time as a retrieving reference. To change the
computer time after installation will create a high risk of wrong time reference.
• Before SuperDVR is used, it must be confirmed whether the current
computer time is correct.
• Deactivate computer auto time updating function of system.
• Make sure the motherboard of the computer is in normal state.

96
Appendix 2.4.9 If system time must be changed, please do following
preparations first
1. If new time is later than current computer time (for example, change
2006/01/01 0 0 0 (current system time) to 2007/01/01 0 0 0 (target time)),
the change can be made directly.
2. If new time is before the current computer time (for example, change
2007/01/01 0 0 0 (current system time) to 2006/01/01 0 0 0 (target time)),
first stop the video recording, backup all video data. Turn off SuperDVR,
change computer time, and re-start SuperDVR.
Appendix 2.4.10 How to use REPAIRDB to repair SuperDVR database
Enter the installation directory of SuperDVR.
C:\ProgramFiles\SuperDVR\SuperDVR,open the REPAIRDB.EXE file. The
user ID is ‘SYSTEM’, and no password is needed to enter. After entering,
please select database to repair.
Appendix 2.4.11 How to set power options of Microsoft VISTA system
After installing VISTA system, you should enter the Start menu to choose
‘Control Panel’. Select ‘System and Maintenance’ link. And select ‘Power’
option in ‘System and Maintenance’ window. Finally, Select the ‘High
Performance Change Plan Setting’ option.
Appendix2
Quick Start
for Using
Appendix 3.1 Installation Instructions
STEP1 Insert the PCI card (But do not connect the Camera yet).
STEP2 Launch Windows.
STEP3 Windows will come up with Hardware wizard. Just click ‘Cancel’.
STEP4 Put the installation CD in the drive and open up SuperDVR folder
and run the ‘Setup’ file.
STEP5 Follow the steps and in WinXP, it will come up with a message
saying the program has not passed Windows logo testing, just select
‘Continue anyway’.
STEP6 Reboot computer once installation has completed.
For complete instructions, refer to Chapters 1-7.
Once Booted up, On Desktop there will be a ‘SuperDVR’ icon.
If this program recognizes the PCI card, program will open OK. Please log in
to the program.
Once your program is opened, now connect the Cameras.

97
Appendix 3.2 Troubleshooting
Appendix3.2.1 When opening the SuperDVR program, it says ‘ Can’t
find card ’.
Reboot one more time. If you still have the same problem, click ‘Start -
Program - SuperDVR - Install’ and then uninstall the program. Reboot the
computer. After reboot, go back to ‘Start - Program - SuperDVR - Install’. Now
click on ‘Install’ to reinstall driver. Then Reboot.
If for some reason still ‘Can’t find card ’, uninstall driver again. Shut down the
computer. Move PCI Card to another slot. Reboot it. And click ‘Cancel’ when
Windows detects it.
Then reinstall driver by going to ‘Start - Program - SuperDVR - Install’.
For other settings in the program, please read Chapters 1-7.
Appendix 3.2.2 How to setup the web client to monitor from Internet
1. On Main Computer where DVR Card Installed
STEP1 Make sure the computer is connected to Internet. DSL or Cable
Modem, or T1/T3 line.
STEP2 Find out your router’s public IP address. You can go to
www.myipaddress.com from a computer the card is installed in.
STEP3 Open up the SuperDVR program and go to basic configuration.
Checkmark ENABLE Web Camera Service and Remote Play Back Service.
STEP4 Make Note of Data Port, Command Port and RPB port.
NOTICE
:
I
f you are connecting to internet using router, you n
eed to
configure the setup of the router and do the port forwarding. Ports
that need to be forwarded: 80, 1159, 1160 and 1161. Check your
router manual on how to setup that.
2. On Remote Client Computer
STEP1 Minimum Requirement for the client computer:
- 2.8 GHZ processor or later
-512 MB RAM
- Windows 2000 (SP4 min), Win XP (SP2 min), Vista
- MOST AGP and PCI-E cards with 64MB of Video RAM and full
Direct Draw support are supported.
- DirectX 9.0 minimum
- 100 GB free space on HDD
STEP2 Open up Internet Explorer.
If you are running XP with SP2 on Internet explorer, click ‘Tools -
Internet Option - Security - Custom Level’, and enable ‘Download

98
unsigned ActiveX controls’ (see section 7.2.4).
STEP3 In the IE textbox of the Internet explorer, input the router’s Public IP
(see section 7.2.2).
STEP4 Select ‘Live Surveillance’ and click ‘OK’ on displayed page.
This will download the Webcam program. And then you can
download Remote Playback as well.
STEP5 On Desktop now you should see ‘Webcam’ and ‘Remote Playback’
icon.
STEP6 Open up Webcam, click ‘Key’ symbol icon.
Username: system (Password blank unless you setup a password
on the main computer).
Server: this the IP address of the Main Computer.
Data port: 1159 and Command port: 1160.
STEP7 Click ‘OK’. Now you should be able to view the live video from main
computer.
STEP8 To play back the Video that has been recorded in Main Computer,
Select ‘Remote Playback’ on displayed page.
STEP9 Click on ‘Config’.
Remote server: the IP address of main computer.
IP port: 1161.
STEP10 Then click ‘OK’.
STEP11 Click ‘Login’. Now you should be able to play back the
recorded video from Main Computer.
For more details information, please read Chapters 1-7.

99
Appendix3
Function Tree
Appendix 4.1 SuperDVR Function Tree
Tree1 SuperDVR Functions

100
Appendix 4.2 System Configuration Tree
Tree2 System Configuration

101
Appendix 4.3 IE Client FunctionTree
Tree3 IE Client Function

102
Appendix 4.4 Remote Playback Function Tree
Tree4 Remote Playback Function

103
9
Q-See Product Warranty
Thank you for choosing our products.
All of our products users have a conditional free warranty repair service
for hardware within 12 months starting from purchase date, and a free
exchange service within one month (valid for manufacturing defects).
Permanent upgrading service is provided for the software.
Liability Exclusions:
Any product malfunction, abnormalities in operation or damage caused
by following reasons are not within the free service scope of our company.
Please select payable service.
(1) Equipment damage caused by improper operation
(2) Improper environment and conditions in/on which the equipment operates,
e.g., improper power, environment temperature, humidity and lightening strike
etc. that cause equipment damage.
(3) Damage caused by acts of nature: earthquake and fire etc.
(4) Equipment damage caused by the maintenance of personnel not
authorized by our company.
(5) Product sold over 12 months ago.
In order to provide various services to you, please complete registration
procedure after you purchase the product. Cut off or copy User’s Information
Card and fax or mail it to us after the card is filled in. You can also register the
product by going to the www.q-see.com website and clicking on the Register
link.
If you have questions:
Contact Us:
Mailing Address: Customer Service:
DPS Inc. Phone: 877-998-3440 x 538
8015 E. Crystal Dr Email: cs@dpsi-usa.com
Anaheim, CA 92807
Website: Tech Support:
http://www.q-see.com Phone: 877-998-3440 x 539
Fax: Email: ts@dpsi-usa.com
714-998-3509

104
Customer Information Card
User’s Name Mr./Mrs.
Company Name
Postal Address
Postal code
Phone Number
E-mail
Model Number of
Product
Serial Number of
Product
Purchase Date
Distributor
The material in this document is the intellectual property of our company.
No part of this manual may be reproduced, copied, translated, transmitted, or published in any form or
by any means without our company’s prior written permission.
1. Our products are under continual improvement and we reserve the right to make changes without notice.
But no guarantee is given as to the correctness of its contents.
2. We do not accept any responsibility for any harm caused by using our product.
3. The product picture may differ from the actual product, which is only for your reference. The accessories
will probably be different according to the different selling areas. For details of accessories, please refer to
your local distributor.
Copyright reserved