Radio Shack Two Zone Burglar Alarm System Users Manual 49 454
Two-Zone Burglar Alarm System to the manual 18f1a3b7-e394-42a6-9261-831a798de686
2015-01-21
: Radio-Shack Radio-Shack-Two-Zone-Burglar-Alarm-System-Users-Manual-352216 radio-shack-two-zone-burglar-alarm-system-users-manual-352216 radio-shack pdf
Open the PDF directly: View PDF
.
Page Count: 20

Owner’s Manual
Please read before using this equipment.
Two-Zone Bur
g
lar Alarm System
49-454.fm Page 1 Wednesday, January 17, 2001 10:37 AM

2Features
Features
Your RadioShack Two-Zone Burglar Alarm System provides
the frame for a sophisticated perimeter alarm system. When
properly installed, it warns you of unauthorized entry into
your office or home. Its professional features make it com-
patible with most intrusion sensors and alarms.
You can enhance your system by connecting additional se-
curity devices, such as sirens, lights, and other accessories.
It can even initiate an optional telephone dialer that automat-
ically calls specified phone numbers when the alarm is acti-
vated. Your local RadioShack store carries a full line of UL-
listed security accessories.
Your alarm system’s features include:
Delayed and Instant Alarm Zones — let you install sen-
sors (not supplied) to create delayed and instant alarm
zones. You can install loops of NO (normally open) and NC
(normally closed) sensors in separate groupings within
these zones.
Panic/Tamper Zones — lets you install sensors, such as
panic buttons and tamper switches (not supplied), to form a
panic/tamper alarm zone, so you can sound the alarm any
time, even if the alarm system is not armed.
Battery Backup — lets you connect one rechargeable bat-
tery (not supplied) to provide power if AC power fails, to
maintain all system settings.
Automatic and Manual Battery Test — automatically
checks the battery every 3 hours 50 minutes. You can also
manually test the battery by pressing a button on the alarm
center.
SUPPLIED ITEMS
• 1 remote keypad
• 2 keypad mounting screws
• 1 AC adapter
• 1 alarm center
REQUIRED/OPTIONAL ACCESSORIES
Your alarm system requires the following recommended ac-
cessories, available at your local RadioShack store.
• 1 UL-listed alarm siren and/or strobe light
• 1 or more UL-listed sensors
• 1 rechargeable 12-volt battery such as RadioShack Cat.
No. 960-0460 (available at your local RadioShack store)
• 4-connector phone wire
• 1 or more single-gang electrical boxes and ground wire
(14-gauge or larger), available at your local hardware
store
Any sensors and other items you purchase to enhance your
system might require accessories not listed here. Make sure
you have everything you need before installing your system.
To help avoid false alarms while you install and test the
alarm system, we recommend you use a lamp to temporarily
connect to the alarm output terminals, so you can see it light
instead of sounding the alarm.
IMPORTANT NOTES
• This product is UL-listed under standard 1023 – House-
hold Burglar Alarm System Units.
• Use only UL 1023-listed accessories with this alarm sys-
tem.
• This alarm system is not designed for use as a fire
alarm.
Some insurance companies give a discount for homes pro-
tected by a properly installed security system. Check with
your insurance carrier about the requirements for such a dis-
count.
Home security systems require a permit in some areas.
Check with your local police department before you install
your system.
This system provides Grade B service, which does not su-
pervise the sensors to check for proper connection. To en-
sure complete protection, you should test the complete
system, including each connected sensor and device, once
per week with the supplied AC adapter disconnected from
the alarm center. For more information, see “Weekly System
Check” on Page 18.
WARNING: To reduce the risk of fire or shock hazard, do not expose
this product to rain or moisture.
CAUTION
RISK OF ELECTRIC SHOCK. DO NOT OPEN.
CAUTION: TO REDUCE THE RISK OF ELECTRIC SHOCK, DO
NOT REMOVE COVER OR BACK. NO USER-SERVICEABLE
PARTS INSIDE. REFER SERVICING TO QUALIFIED PERSONNEL.
This symbol is intended to alert you to the presence
of uninsulated dangerous voltage within the prod-
uct’s enclosure that might be of sufficient magnitude
to constitute a risk of electric shock. Do not open the
product’s case.
This symbol is intended to inform you that important
operating and maintenance instructions are
included in the literature accompanying this product.
!
!
© 2001 RadioShack Corporation.
All Rights Reserved.
RadioShack and RadioShack.com are trademarks used by RadioShack Corporation.
49-454.fm Page 2 Wednesday, January 17, 2001 10:37 AM

3A Quick Look at Your Alarm Center/Keypad
A Quick Look at Your Alarm Center/Keypad
POWER DATA1
GND DATA2
PASSWORD
RESET
SYSTEM
RESET BATT
AC
BATTERY
TEST
DIP Switches
Indicator
Indicator
DELAY TIME ADJ
(see “Setting
the Keypad’s
Address” on
Page 13)
ANNC
(see “Using
Annunciate Mode”
on Page 17)
49-454.fm Page 3 Wednesday, January 17, 2001 10:37 AM

4Preparation
Preparation
UNDERSTANDING THE SYSTEM
Your installed alarm system is designed to:
• discourage potential intruders
• scare intruders away before they take your property or
harm you or others
• alert you or others if someone breaks into your home
The alarm center is the main control panel for the alarm sys-
tem. It includes battery and AC power indicators, connec-
tions for sensors and other security devices, battery
connection wires, entry and exit delay controls, and a battery
test button.
To use the system, you must install sensors and other secu-
rity equipment in your home or office and connect them to
the alarm center. Then, if a sensor signals the alarm center
that its zone has been activated, the alarm center causes an
attached alarm device (such as an alarm siren) to sound.
Note: A sensor installed in the panic/tamper zone can acti-
vate an alarm, even if the alarm system is not armed.
UNDERSTANDING ZONES
A zone is a single area of coverage, such as a front door, a
basement window, an entire room, or an entire home or of-
fice. Each zone is protected by one or more sensors (such
as a door/window sensor, motion detector, or panic button).
You can install as many sensors as you need.
Depending on the type of sensor you use and the settings
on the alarm center, you can set up the following types of
zones:
•
Delayed zone —
When the alarm system is armed and a
sensor in a delayed zone is activated, the system waits
for a preset period before sounding the alarm. This gives
you time to open an entry door, walk to a remote keypad
inside your home, and disarm the system before it
sounds the alarm.
•
Instant zone
— When the alarm system is armed and a
sensor in an instant zone is activated, the system
sounds the alarm immediately.
•
Panic/Tamper zone
— When a sensor in a panic/tamper
zone is activated (or when you press the panic button),
the alarm system sounds the alarm immediately, even if
the system is not armed.
Note: As you plan your alarm system, determine the loca-
tions in your home or office you want to protect, then install
sensors to protect the zones you set up (see “Planning Your
Security System”).
PLANNING YOUR SECURITY SYSTEM
Your alarm system is designed to be the base on which you
build a security system for your home or office. Since no two
homes or offices are alike, this system allows you the flexi-
bility to design your security system to meet your individual
needs.
Proper planning will help you identify your security needs
and additional items you must install to meet those needs.
• Check your local and state regulations and ordinances
with respect to installing and using home security sys-
tems. Be sure to secure any required permits before you
continue.
• Become knowledgeable about the different types of sen-
sors and security devices you can use with your alarm
system. Learn how the devices work before you decide
to purchase and install them. This manual cannot
explain every possible sensing device and application.
Carefully read any instructions provided with the devices
you purchase.
Some devices and products mentioned in this manual are
not available from your local RadioShack store. We recom-
mend that you check stores that sell security equipment if
you plan to install security devices that are not available
from your local RadioShack store.
RadioShack is not responsible for defects and errors in other
manufacturers’ products, and assumes no liability for dam-
age to other products or to the alarm system if these prod-
ucts are connected to the alarm system.
Floor Plan
Before you start to install your alarm system, we recommend
that you make a security plan for your home. Even if you
only plan to install a minimal system, take the time to plan a
complete one. This will help you if you later decide to ex-
pand your security system.
Plan to hide the system’s wiring, not only for cosmetic rea-
sons, but to improve the security and effectiveness of the
system.
Also, plan to place outside alarm sirens and lights in high lo-
cations, out of reach under normal circumstances. This in-
creases the range of the devices and helps prevent
tampering.
1. Create a basic floor plan including the following informa-
tion about each room inside and all areas outside of
your home or office:
• Room name
• Interior and exterior walls
• Location of all openings (doors and windows)
• Location of each AC outlet and telephone jack
• Planned location of outside alarm sirens and/or lights
• Measurements of all rooms and interior/exterior walls
• Where you plan to install the alarm center
49-454.fm Page 4 Wednesday, January 17, 2001 10:37 AM

5Preparation
2. After you complete the basic floor plan, make three cop-
ies of it. Label each copy as being the plan for one of the
three zone types (instant, delayed, and panic/tamper).
3. Decide what sensors and other parts you want to install
and where, and mark them on the appropriate floor plan.
Then draw a line connecting the sensors you want to
assign to the labeled zone type on each copy. This will
show how the sensors will be wired to each other and
the alarm center.
For example, if you want to install a panic button in the
bedroom and a tamper switch on a wall safe, on the
Panic/Tamper floor plan, draw a loop connecting those
two sensors and ending at the location where you want
to install the alarm center.
When you finish, these drawings will show the layout of
each zone and the location of each sensor assigned to
that zone.
Note: Since a violation of the panic/tamper zone immediate-
ly sounds the alarm (even if the system is not armed), do not
assign sensors protecting doors and windows to the panic/
tamper zone.
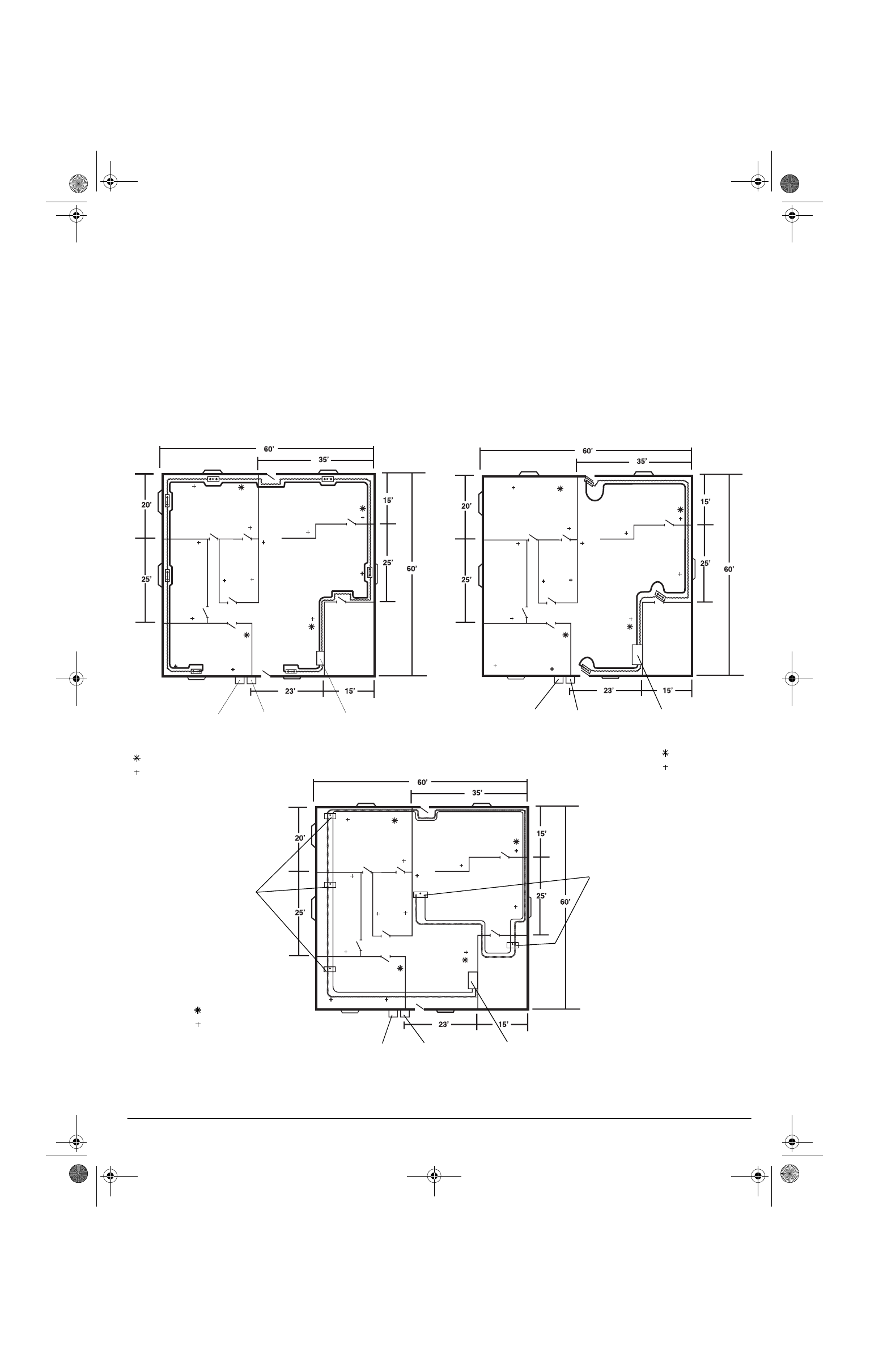
The different illustrations below show possible layouts for a
home security system. Your floor plan will probably differ.
Instant Zone Delayed Zone
Panic/Tamper Zone
Alarm Siren Exterior Strobe Alarm Center
BR1 Kitchen
BR2
BR3
LR
Dining
Garage
Bath
Telephone Jack
AC Outlet
Alarm Siren Exterior Strobe Alarm Center
BR1 Kitchen
BR2
BR3
LR
Dining
Garage
Bath
BR1 Kitchen
BR2
BR3
LR
Dining
Garage
Bath
Alarm Siren Exterior Strobe Alarm Center
Tamper Switches
Panic Buttons
Telephone Jack
AC Outlet
Telephone Jack
AC Outlet
49-454.fm Page 5 Wednesday, January 17, 2001 10:37 AM

6Preparation
System Planning Worksheet
Use the system planning worksheet shown to help you de-
termine what sensors and components you will need to
equip your alarm system. Using your floor plans as a guide,
fill out the system planning worksheet with the following in-
formation.
• Name of room or area
• Number and type of doors and/or entrances to area
• Number and type of windows in area
• Type and number of sensors needed to protect each
location
• Type of alarm siren, sounding device, and lighting
device required
Room/Area Door Window Sensor Sounder Other
49-454.fm Page 6 Wednesday, January 17, 2001 10:37 AM

7Preparation
Making a Shopping List
When you complete your floor plan and system planning
worksheet, use them to prepare a shopping list of the items
you need to complete your system.
Notes:
• Before you actually purchase any items on your shop-
ping list, read through the rest of this manual. Depend-
ing on your installation, later sections might contain
additional information you need to select the proper
items.
• Refer to your floor plans to determine how much hookup
wire you need to connect all sensors and security
devices to the alarm center.
Safeguarding Planning Records
After you plan your system and purchase all the items you
need, don’t forget to store all drawings, worksheets, re-
ceipts, and other documents in a secure place. Don’t throw
them in the trash where a potential intruder might find them.
OTHER WAYS TO IMPROVE SECURITY
Securing Your Home or Office
Although your alarm system can function as a detection de-
vice and a deterrent, it does not physically keep intruders
out. You should also consider the following ways to help pro-
tect your home or office.
1. Install sturdy locks on doors and windows.
2. Make sure that your home or office looks occupied when
you are away. Steps you can take to accomplish this
include:
• connecting lights to cycled timers
• keeping your lawn mowed and your property main-
tained
• having mail and newspapers picked up regularly or
cancelled while you are away
3. Organize or join a Neighborhood Watch association.
4. Put warning stickers on doors and windows to show
potential intruders that your home is protected by a
security system.
Check your local police department for information on other
measures you can take to ensure the security of your home.
Protecting Personal Property
In addition to protecting the boundaries of your home or of-
fice, you should also consider the following ways to help pro-
tect its contents.
Inventory your property. Make a complete inventory of
your personal property. Then, if your property is stolen, your
police department and/or insurance company can use the in-
formation to help recover the property and/or reimburse you
for its value. Once you complete your inventory, keep it in a
safe place. You might also want to provide a copy to your in-
surance company.
Label or mark your property.
Apply warning decals. You can apply warning decals to
the back of TV sets, stereo equipment, your personal com-
puter and its peripherals, and other large, valuable items.
Since items you might keep outside your home, such as
power tools, air compressors, and lawn equipment, are also
targeted by thieves, don’t forget to label those items, too.
Note: Many agencies that produce warning decals also print
a toll-free telephone number or identification number on
them that you can use to find out if stolen property has been
recovered.
Use an ultraviolet marking pen. Invisibly mark smaller
valuables with personal information, such as your driver’s li-
cense number or Social Security number. Although you (or a
thief) can’t see the ink on the object, it appears brightly un-
der ultraviolet light. Items you should mark include cameras,
bicycles, hand tools, firearms, musical instruments, and art
objects.
Note: For more information about obtaining warning decals
and marking pens, contact your local police department or
stores that sell security equipment.
49-454.fm Page 7 Wednesday, January 17, 2001 10:37 AM

8Preparation
Property Inventory List
Make as many copies as you need.
Number Item Model Serial No. Value Insured (Y/N) Where/How
Marked
49-454.fm Page 8 Wednesday, January 17, 2001 10:37 AM

9Preparation
SETTING UP THE SYSTEM
Your system comes complete with the alarm center and one
remote keypad. You must set up the alarm center before you
add sensors and other components to the system.
Choosing a Location for the Alarm Center
The supplied alarm center controls your alarm system’s
functions and is the main connection point for all sensors,
other connected devices, and power. Because no two
homes are the same, we can only provide the following
guidelines for choosing a mounting location for the alarm
center.
• Mount the alarm center where it cannot be easily seen
by an intruder or casual visitor (for example, in a closet
or pantry).
• Mount the alarm keypad where you can quickly access it
after you enter your home.
• Never mount the alarm center in a garage, basement,
attic, or other location where it will be subjected to tem-
perature and humidity extremes.
• Mount the alarm center near an AC outlet that is not
controlled by a wall switch.
• If you plan to connect an automatic telephone dialer to
your alarm system, mount the alarm center near a tele-
phone jack.
• To make installing hookup wire easier, mount the alarm
center in a location central to the doors, windows, and
rooms you plan to protect.
Using the Tamper Switches
There are two tamper switches built into the alarm center.
One switch is inside the front of the alarm center above the
fuse. This switch is designed to sound the alarm if an intrud-
er attempts to open the front of the alarm center. The other
switch is covered by a plastic knock-out plug on the back of
the alarm center on the upper right side. This switch is de-
signed to sound the alarm if an intruder attempts to remove
the alarm center from its mounting location.
Mounting the Alarm Center
To install the alarm center, you need four screws (not sup-
plied) with heads that fit into the keyhole slots on the back of
the alarm center.
1. Place the supplied template on the wall at the selected
location. Then mark the positions for all four mounting
screws.
2. In each marked location, drill a hole slightly smaller than
the screw.
Caution: Be careful not to drill into any wiring or objects
behind the wall. Be sure to use the proper type of screw
(molly bolt or anchors) if you do not mount the panel on
wall studs.
3. Insert the screws into the wall, letting each head extend
3/16 inch from the wall.
4. Use a flat-blade screwdriver to snap off the knock-out
plug on the back of the alarm center to expose the
tamper switch.
Note: To prevent interference with the tamper switch,
you must completely remove the knock-out plug.
5. Align the keyhole slots on the back of the alarm center
with the screw heads in the wall, then carefully push the
alarm center onto the screw heads and slide it down.
6. Use a flat-blade screwdriver to open the alarm center’s
door, then use a screwdriver to tighten the mounting
screws to secure it.
Installing Battery Backup
The alarm center’s backup battery powers the alarm system
during an AC power failure. When AC power is restored, the
alarm center automatically recharges the battery.
You need one rechargeable 12-volt 4 AH lead acid battery to
power the alarm center during an AC power failure. For the
best performance and longest life, we recommend a Ra-
dioShack battery.
Warning: Do not connect the battery to the alarm center yet.
You will connect it while testing the alarm system.
Cautions:
• Use only the recommended battery in the alarm center.
• The recommended battery contains high current when
charged. Do not short-circuit its positive (+) and negative
(–) terminals with any metal object. Avoid casual han-
dling.
• If the AC adapter is connected to the alarm center,
unplug it from the AC outlet before installing or replacing
the battery.
To install the backup battery, simply slide the battery inside
the alarm center.
Tamper Switch
49-454.fm Page 9 Wednesday, January 17, 2001 10:37 AM

10 Preparation
Choosing a Location for the Remote Keypad
The remote keypad supplied with your alarm system lets you
arm and disarm the system, change the system’s operation,
and see status information about the system. You can also
purchase up to three additional keypads to use with your
alarm system.
• Mount the remote keypads in a location where all family
members who will use them can reach them.
• For many installations, it is best to mount the remote
keypads near the main entry of your home.
• The remote keypad supplied with your alarm system is
not weatherproof. Do not install it in a location where it
will be exposed to excessive moisture.
• The remote keypads should not be mounted in a loca-
tion where they are exposed to temperatures outside the
range of 32–122° F.
CHOOSING THE COMPONENTS
Sensors
Sensors are the eyes and ears of your alarm system. When
activated, they send a signal to your alarm center that acti-
vates the alarm. Your local RadioShack store carries a full
line of sensors.
Sensors are usually classified into two types:
Perimeter Sensors — These sensors protect areas such as
doors and windows. Types of perimeter sensors include
door and window contacts, window foil, glass-breakage de-
tectors, and infrared photorelays.
Area Sensors — Types of area sensors include ultrasonic
and infrared motion detectors, vibration detectors, and panic
buttons and tamper switches. You can place area sensors
such as motion detectors in wide areas such as your living
room, or in access areas such as halls. You can place panic
buttons just about anywhere.
Decide which entrances or areas an intruder would be most
likely to use, and place sensors at those entrances or areas
first.
The sensors you can connect to the alarm system should be
either normally-open (NO) or normally-closed (NC) for the
Delay Zone and Instant Zone, but only normally-open for the
Panic/Tamper Zone.
Normally-Open Sensors — stop electricity from flowing
when not activated. When activated, a normally-open sensor
completes the electrical path and signals the alarm center to
sound the alarm.
Normally-Closed Sensors — allow electricity to flow when
not activated. When activated, normally-closed sensors
break the electrical path and signal the alarm center to
sound the alarm.
Notes:
• You cannot mix normally-open and normally-closed sen-
sors within one loop.
• Normally-closed sensors are considered more secure
than normally-open sensors.
• Unless otherwise noted, you need two-conductor hook-
up wire to connect the sensors to the alarm center.
• Refer to your RadioShack catalog for specific types and
catalog numbers of each sensor listed here.
The most common types of sensors are:
Magnet Switches — Magnet switches are available in both
normally-open and normally-closed types. When mounted, a
magnet switch either opens or closes when the object it is
attached to is moved, signaling the alarm center to sound
the alarm. You can use magnet switches for doors, win-
dows, or anywhere you want the alarm to sound when
something is moved.
Plunger (Contact) Switches — Plunger switches are avail-
able in both normally-open and normally-closed types. You
can install a plunger switch inside a door frame on the side
with the hinges. This type of switch cannot be seen when the
door is closed. You can use plunger switches for doors, win-
dows, or any where you want the alarm to sound when
something is opened or moved.
Metallic Foil Tape — Metallic foil tape is a normally-closed
type of sensor. Install metallic foil tape on the glass just in-
side the outer frame of windows that are not movable, such
as plate glass or glass inserts in doors. If the glass is broken,
the tape also breaks and signals the alarm center to sound
the alarm. Mount metallic foil tape around the perimeter of
the glass, then connect it to a normally-closed circuit.
Vibration Detectors — Vibration detectors are available in
both normally-open and normally-closed types. When these
sensors detect vibration on any surface, they signal the
alarm center to sound the alarm.
Glass Breakage Detectors — Glass breakage detectors
are a type of vibration detector and are available in both nor-
mally-open and normally-closed types. You attach a glass
breakage detector near a window. If the window is broken or
struck, the glass breakage detector signals the alarm center
to sound the alarm.
Motion Detectors — The most common types of motion de-
tectors are:
•Ultrasonic — Send out an inaudible high-frequency
sound, which bounces off objects in the protected area
and returns to the sensor. When an object moves in the
Battery
49-454.fm Page 10 Wednesday, January 17, 2001 10:37 AM

11Preparation
protected area, the pattern of the sound waves changes,
signaling the alarm center to sound the alarm.
•Infrared — Work like ultrasonic motion detectors,
except that they use invisible infrared light instead of
high-frequency sound to detect motion.
•Microwave — Work like ultrasonic motion detectors,
except that they use radio waves instead of high-fre-
quency sound to detect motion.
Some motion detectors have a built-in alarm sounder and
can be connected directly to an alarm siren or other sound-
ing device.
If the type of motion detector you select has tamper protec-
tion, you might need six-conductor hook-up wire to connect
it to the alarm center. Otherwise, you need four-conductor
hook-up wire to connect motion detectors.
Panic Buttons and Tamper Switches — Are normally-
open types of sensors. A panic button lets you sound the
alarm at any time, even if the alarm center is not armed. A
tamper switch instantly sounds the alarm if someone tries to
open the secured object. You can mount these switches on
the alarm center, a gun cabinet, or anywhere you want the
alarm to instantly sound if you press the switch or someone
tampers with it.
Sirens and Lights
Pre-Alarm Buzzer — When the alarm system is armed and
a delayed zone is activated, the alarm center activates a
pre-alarm for the amount of time you set (see “Setting the
Entry and Exit Delay” on Page 17). After that delay time
elapses, the alarm system sounds the alarm siren and other
connected security equipment. When the battery is low, the
pre-alarm sounds for 5 seconds per minute. To hear the pre-
alarm, you must connect a small sounding device such as a
piezo buzzer to the alarm center.
Mount the device where you can hear it during the entry de-
lay. Do not mount it on or near the alarm center. The sound
might lead an intruder to find the alarm center and possible
disable the systems.
Alarm Siren — When a sensor is activated and the system
is armed (or the panic/tamper zone is violated), the system
can activate an alarm siren connected to the alarm center.
Mount the siren outside your home where you, your neigh-
bors, and the police can hear it. If you mount it in an area
that is not protected by the alarm system (such as an out-
side eave), mount it inside a siren enclosure to discourage
tampering.
Security Strobe — When a sensor is activated and the sys-
tem is armed (or the panic/tamper zone is violated), the sys-
tem can activate a security strobe or other types of lights
connected to the alarm center.
Note: You can connect a security strobe to the same out-
puts on the alarm center as you use for the alarm siren. For
more information, see “Connecting a Siren and/or Lights” on
Page 14.
When deciding where to install a security strobe, choose a
location outside your home where the strobe’s light is highly
visible.
Automatic Telephone Dialer
For a higher level of security, you can connect an automatic
telephone dialer to your alarm system. We recommend
RadioShack Cat. No. 49-434 (available at your local
RadioShack store).
An automatic telephone dialer connects to your phone line
and automatically calls one or more preset phone numbers if
the alarm sounds.
Note: Many automatic telephone dialers can use the alarm
system’s battery power to dial numbers if AC power is
disconnected.
When deciding where to install an automatic telephone dial-
er, select a location that is:
• Near a phone jack
• Near an AC outlet
• Not easily accessible to an intruder
Cautions:
• If you connect an automatic telephone dialer to your sys-
tem and want to program it to call your local police
department, check with them first. Some police depart-
ments do not accept calls from automatic telephone dial-
ers. If your police department does not accept calls from
automatic dialing equipment, you can program it to call a
friend or private security service who can notify the
police department, if necessary.
• Some automatic telephone dialers deliver a prerecorded
voice message to the desired number when activated,
while others transmit an electronic signal to a private
security service. In most cases, private security services
charge a fee to accept calls from automatic dialing
equipment. For more information, call the police depart-
ment and private security services in your area.
49-454.fm Page 11 Wednesday, January 17, 2001 10:37 AM

12 Installation
Installation
SYSTEM WIRING CONNECTIONS
Many sensors come with instructions to help you install
them. Follow the instructions (if provided) with each sensor
to install it in the location you noted in your floor plan. Then
mount the alarm center and connect the sensors and other
security devices to it.
Use this chart and the following sections to connect the sys-
tem’s wiring to the alarm center.
Note: You can power a remote security device by connect-
ing it to Terminals 14 and 15. For more information, see
“Connecting and Powering a Remote Security Device” on
Page 14.
CONNECTING REMOTE KEYPADS
You must connect at least the supplied remote keypad to the
alarm system to arm and disarm it. You can connect up to
three additional remote keypads, in any combination.
Important:
• You must connect each remote keypad to the alarm cen-
ter before you connect power to the alarm system.
• When the alarm system is on, the alarm center con-
stantly confirms that each keypad is still connected to
the system, and vice versa.
• If the connection between the alarm center and keypad
is interrupted when the system is armed, READY and
ARMED alternately flash and the alarm sounds for 4 min-
utes. If the connection between the alarm center and
keypad is interrupted when the system is disarmed, the
pre-alarm sounds for 5 seconds, the alarm sounds for 4
minutes, and READY and ARMED alternately flash.
Mounting the Keypad
Follow these steps to mount the supplied remote keypad on
a wall.
Note: You need 4-connector phone wire (not supplied) to
connect remote keypads to the alarm system.
1. Select a location on the wall next to (but not directly
over) a wall stud.
2. Using a single-gang electrical box as a template, cut a
hole in the wall the size of the box.
3. Route the connection wires for the remote keypad from
the alarm center through the hole. Be sure to label each
wire to be connected to the remote keypad, and leave
enough slack in the wires so you can attach them to the
keypad later.
4. Insert the electrical box into the hole, then secure it to
the wall by nailing it to the nearby wall stud, or using
metal strips designed for mounting an electrical box in
wallboard. Make sure the electrical box is recessed
slightly below the surface of the wall.
5. Press the button on the bottom of the keypad, then
remove the keypad’s front cover.
6. Connect the wires to the keypad. Connect POWER on
the keypad to Terminal 9 on the alarm center, GND on
the keypad to Terminal 7, DATA1 on the keypad to Termi-
nal 10, and DATA2 on the keypad to Terminal 8.
7. Use the two supplied keypad mounting screws to secure
the keypad inside the electrical box. Then replace the
keypad’s front cover.
Note: If a keypad is disconnected from the alarm center
while the system is armed, ARMED flashes and the alarm
sounds. Reconnect the keypad to the alarm center and
press SYSTEM RESET on the alarm center. Then you can
use the keypad with the alarm center again.
Terminal Function
1 Delayed Zone Loop — Normally-Open
2 Delayed Zone Loop — Normally-Closed
3 Common (Ground)
4 Instant Zone Loop — Normally-Closed
5 Instant Zone Loop — Normally-Open
6 Panic/Tamper Zone — Normally-Open
7 Remote Keypad — GND
8 Remote Keypad — DATA2
9 Remote Keypad — POWER
10 Remote Keypad — DATA1
11 Alarm Relay contact — +24 VDC 1A Max.
12 Alarm Relay contact — +24 VDC 1A Max.
13 Pre-alarm negative (–) — 8 to 18 VDC 50 mA Max.
14 Pre-alarm positive (+) — 8 to 18 VDC 50 mA max.
15 Alarm Siren/Light negative (–) — 10 to 18 VDC 1A
Max.
16 Alarm Siren/Light positive (+) — 10 to 18 VDC 1A
Max.
17 Security Dialer
18 AC Adapter — 12 VAC 30VA
19 AC Adapter — 12 VAC 30VA
49-454.fm Page 12 Wednesday, January 17, 2001 10:37 AM

13Installation
Setting the Keypad’s Address
Note: If you connect only the supplied remote keypad to the
alarm center, you do not need to set the keypad’s address.
If you connect remote keypad(s) other than the supplied
one, you must set the switches on the back of each keypad
to assign it a unique address.
Set the switches for each remote keypad as follows:
CONNECTING SENSORS INTO LOOPS
After you install all sensors in the locations you noted in your
floor plan, you can connect your alarm system’s sensors to-
gether into the three types of loops.
Delayed Loop (Zone) — Causes the alarm center to sound
the alarm after a preset period of time when a sensor with
the loop is activated, if the alarm system is armed. You can
have separate groupings of normally-open and normally-
closed sensors within this type of loop.
Instant Loop (Zone) — Causes the alarm center to sound
the alarm instantly when a sensor within the loop is activat-
ed, if the alarm system is armed. You can have separate
groupings of normally open and normally-closed sensors
within this type of loop.
Panic/Tamper Loop (Zone) — Causes the alarm center to
sound the alarm instantly when a sensor within the loop is
activated, even if the alarm system is not armed. You can
only have a group of normally-open sensors within this type
of loop.
To make a loop of normally-closed sensors, you must con-
nect them in series. This means you cut one of the conduc-
tors and connect the sensor in line with that conductor.
To make a loop of normally-open sensors, you must connect
them in parallel. This means you connect both conductors to
each sensor along the loop.
Note: When you connect sensors to the loops, make sure all
of the sensors within each group are either normally-open or
normally-closed. You cannot mix different types of sensors
within the same group.
Connecting Loops of Sensors to the Alarm
Center
After you have connected all sensors noted in your floor plan
in loops, route the ends of each loop of sensors to the alarm
center’s location.
Note: To make it easier to connect the loops of sensors to
the alarm center, use tape you can write on to mark the end
of each loop’s wire pair with its zone type and if the connect-
ed sensors are normally-open or normally-closed.
After you route the wires for each loop to the alarm center,
follow these steps to connect the wires to the alarm center.
1. Use a screwdriver to knock off one of the plugs on the
alarm center’s case.
2. Route each loop’s wires through the plug’s hole.
3. Use a screwdriver to remove the jumpers between Ter-
minals 2 and 3 and Terminals 3 and 4.
Note: Save these jumpers. You might have to re-install
them after you connect the loops.
4. Strip about 1/4 inch of insulation from the end of each
wire.
5. Use a screwdriver to connect each loop’s wires to the
alarm center as follows.
Note: Do not connect more than two wires to a single
terminal. If there are more than two wires to connect to a
terminal, first connect the wires to an external barrier
strip, then connect a single wire from the barrier strip to
the terminal.
•Delayed Zone (Terminals 1, 2, and 3) — If you con-
nected normally-open sensors to this loop, connect
the loop’s wires to Terminals 1 and 3. If you con-
nected normally-closed sensors to this loop, connect
the loop’s wires to Terminals 2 and 3.
•Instant Zone (Terminals 3, 4, and 5) — If you con-
nected normally-open sensors to this loop, connect
the loop’s wires to Terminals 5 and 3. If you con-
nected normally-closed sensors to this loop, connect
the loop’s wires to Terminals 4 and 3.
Note: Terminal 3 provides grounding for the Instant and
Delayed Zone’s loops. One wire of both normally-open
and normally-closed loops of sensors is connected to
Terminal 3.
•Panic/Tamper Zone (Terminals 6 and 7) — Connect
the panic/tamper loop’s wires to Terminals 6 and 7.
Jumpers on Normally-Closed Terminals
Both of your alarm center’s normally-closed loops must have
a complete circuit (one of the supplied metal jumpers or a
loop of normally-closed sensors) before the system will arm.
Your alarm center comes with two metal jumpers for your
alarm system’s normally-closed loops.
Depending on your installation, follow these instructions to
install the jumpers.
•
If you did not install any normally-closed loops of sen-
sors,
install one jumper between Terminals 2 and 3, then
install the other jumper between Terminals 3 and 4.
•
If you installed a normally-closed loop of sensors only in
the Delayed Zone,
install a jumper only between Termi-
nals 3 and 4.
Keypad Number Address 1 Address 2
1Off Off
2On Off
3Off On
4On On
49-454.fm Page 13 Wednesday, January 17, 2001 10:37 AM

14 Installation
•
If you installed a normally-closed loop of sensors only in
the Instant Zone,
install a jumper only between Termi-
nals 2 and 3.
•
If you installed normally-closed loops of sensors both in
the Instant and Delayed Zones,
do not connect any
jumpers.
CONNECTING A PRE-ALARM BUZZER
Caution: You must use a pre-alarm buzzer that uses 12
volts and is rated at 50 mA or less. Using a pre-alarm buzzer
that does not meet these specifications could damage the
alarm center or the pre-alarm buzzer.
Connect the pre-alarm buzzer’s negative (–) wire to Termi-
nal 13, then connect the pre-alarm buzzer’s positive (+) wire
to Terminal 14.
CONNECTING AND POWERING A
REMOTE SECURITY DEVICE
You can power a remote security device by connecting it to
Terminals 14 and 15 on the alarm center.
Caution: You must use a remote security device that uses
12 volts and is rated at 750 mA or less. Using a device that
does not meet these specifications could damage the alarm
center or the device.
Note: The voltage supplied from Terminals 14 and 15 varies
from 10 to 18V DC, depending on the AC voltage, battery
voltage, and the amount of accessory power being used.
Connect the device’s negative (–) wire to Terminal 15, then
connect the device’s positive (+) wire to Terminal 14.
Connecting a Remote Security Device to the
Alarm Relay Contact Switch
Notes:
• Terminals 11 and 12 do not provide power to the device.
They simply turn it on or off.
• The device you use must have contact switch connec-
tions that cause the device to trigger when the alarm
center contact switch closes.
Connect the device’s switch connections to Terminal 11 and
Terminal 12.
CONNECTING A SIREN AND/OR
LIGHTS
You can connect an alarm siren and security strobe or other
light to Terminals 15 and 16 on the alarm center. When the
alarm system sounds the alarm, it activates the alarm siren
and light.
Warning: Do not connect the alarm siren and/or light to the
alarm center yet. You will connect them while testing the
alarm system.
Caution: If you connect both an alarm siren and light to the
alarm center, they must be connected in parallel and the
combined rating of both devices must be 1A or less. Using a
siren and light together that do not meet this specification
could damage the alarm center, siren, and light.
Note: When you test the system, we recommend you con-
nect a test lamp to the alarm center instead of the alarm si-
ren and/or light. This lamp will let you see if the alarm siren
and/or light will work properly during the test without produc-
ing a false alarm. We explain this in detail in “Completing
and Testing the Installation”.
CONNECTING AC POWER
Use a screwdriver to attach 14-gauge hookup wire to both
terminals on the back of the AC adapter, then connect one
wire to Terminal 18 and the other wire to Terminal 19 on the
alarm center. It does not matter which wire you connect to
Terminal 18 or Terminal 19.
Warning: Do not plug the AC adapter into the AC outlet yet.
You will plug it in while testing the alarm system.
Note: Make sure the AC outlet you use is not controlled by a
wall switch.
COMPLETING AND TESTING THE
INSTALLATION
Now you can finish installing your alarm system and test it to
be sure that it works. This will also help you understand its
operation.
Important: For proper operation, make sure the alarm cen-
ter’s door is closed before plugging in the AC adapter.
Cautions:
• Always notify local authorities, your neighbors, and other
people in your home or office before you test your alarm
system. In some areas, testing any part of your alarm
system might be considered a false alarm, which might
be illegal in your area. Check the regulations in your
area.
• If you connected an automatic telephone dialer to the
alarm center, notify the people and/or security company
whose numbers the device will call and get their prior
consent before you test your alarm system. Some secu-
rity companies charge a fee for test calls.
1. Double-check all steps in “Installation” on Page 12 to
make sure you connected everything correctly.
49-454.fm Page 14 Wednesday, January 17, 2001 10:37 AM

15Installation
2. Connect a test lamp to Terminals 15 and 16 on the alarm
center. This lamp lets you see if the alarm siren and/or
security strobe will work.
Caution: You must use a lamp that uses 12 volts and is
rated at 1A or less. Using a lamp that does not meet
these specifications could damage the alarm center or
the lamp.
3. Plug the AC adapter into a standard AC outlet.
Caution: To prevent electric shock or fire hazard, use
only the supplied AC adapter to power the alarm center.
ARMED on the keypad and AC on the alarm center light,
BATT and READY flash to indicate an exit delay (since
the alarm system is in the process of arming). If they
light or flash, go to Step 4.
If the indicators do not light or flash, unplug the AC
adapter and make sure:
• The fuse inside the alarm center is not blown. If it is,
replace it (see “Replacing the Fuse” on Page 19) and
repeat this step.
• The AC adapter’s wires are connected correctly to
Terminals 18 and 19. If they are not, connect them
correctly (see “Connecting AC Power” on Page 14)
and repeat this step.
• The AC outlet has AC power. If it does not, restore AC
power and repeat this step.
•RESET on the AC adapter is not popped out (indicat-
ing an overload). If it is, correct the overload, press
RESET completely back inside the AC adapter (see
“Resetting the AC Adapter’s Circuit Breaker”), and
repeat this step.
4. Unplug the AC adapter.
5. If you installed the backup battery, connect the black
battery lead inside the alarm center to the battery’s neg-
ative (–) terminal, then connect the red battery lead to
the positive (+) terminal.
Caution: Make sure the battery is connected correctly
inside the alarm center. Improper installation might
cause the fuse inside the alarm center to blow, prevent
the alarm system from operating during an AC power
failure, and damage the battery and the alarm system.
Important: For proper operation, make sure the alarm
center’s door is closed before plugging in the AC
adapter.
6. Plug in the AC adapter. AC on the alarm center lights.
READY flashes. If READY flashes, go to Step 8.
If READY does not flash, one or more of the loops of
sensors is not connected properly, or one or more of the
sensors has been activated. Make sure all sensors are
in their normal states (either normally open or normally
closed) on the same loop. If they are not, connect them
correctly (see “Connecting Sensors into Loops” on
Page 13 and “Connecting Loops of Sensors to the
Alarm Center” on Page 13).
If READY is still off, check the loops as follows:
•Normally-Open Loops — Disconnect the wires from
Terminals 1 and 5. If READY lights, one of the nor-
mally open loops (either in the Instant Zone or
Delayed Zone) is not wired correctly. Reconnect the
wires for each group in each loop separately to deter-
mine which loop is not wired correctly.
•Normally-Closed Loops — Connect a short piece of
wire between Terminals 2 and 3, then connect
another between Terminals 3 and 4. If READY lights,
one of the normally closed loops (either in the Instant
Zone or Delayed Zone) is not wired correctly.
7. Arm the alarm center by using any connected keypad to
enter the password (1234 is the default password) then
press ARM once, or simply press ARM twice. Make sure
ARMED on the keypad is on.
Note: You cannot arm the alarm center if any loops
remain activated. If any of the loops were activated
when the alarm system was turned on, ARMED will be
off, indicating that the alarm center did not arm because
of the loop violation.
8. Check the loops installed in the Delayed Zone.
Turn DELAY TIME ADJ to 55, then set off any sensor
installed in the Delayed Zone.
The pre-alarm sounder connected to Terminals 13 and
14 begins to sound and continues sounding for 55 sec-
onds during the entry delay time. ARMED starts blinking.
After the entry delay time expires, the lamp you con-
nected to Terminals 15 and 16 (alarm siren and light)
lights for 4 minutes.
Disarm the alarm system by entering 1 2 3 4 (the default
password) then pressing CANCEL on a keypad until
ARMED stops blinking.
Reset the sensor you set off above. READY lights.
9. Press ARM twice so ARMED lights.
10. Check the loops installed in the Instant Zone.
Set off any sensor installed in the Instant Zone. READY
turns off, ARMED blinks, and the lamp you connected to
Terminals 15 and 16 (alarm siren and light) lights for 4
minutes.
Disarm the alarm system by entering 1 2 3 4, then press-
ing CANCEL on a keypad until ARMED stops blinking.
Reset the sensor you set off.
11. Check the sensors installed in the Panic/Tamper Zone.
Disarm the alarm system by entering 1 2 3 4, then set off
any sensor installed in the Panic/Tamper Zone. READY
turns off, the alarm center arms, ARMED blinks, and the
lamp you connected to Terminals 15 and 16 (alarm siren
and light) lights for 4 minutes.
Reset the sensor you just set off, then disarm the alarm
system by entering the password.
49-454.fm Page 15 Wednesday, January 17, 2001 10:37 AM

16 Operation
Test the panic function of each installed remote keypad
by holding down ENTER and CANCEL. The alarm center
arms, ARMED blinks, and the lamp you connected to
Terminals 15 and 16 (alarm siren and light) lights for 4
minutes.
12. Disarm the alarm system by entering 1 2 3 4, then hold
down SETUP for 2 seconds. ARMED and READY flash
slowly. Enter the password. ARMED and READY flash
quickly. Press ANNC once. ARMED and READY turn off.
To enter announce mode, press ENTER. READY flashes
3 times. To exit announce mode, press CANCEL. READY
flashes 3 times.
13. Hold down BATT TEST on the alarm center for 2 sec-
onds. If BATT on the alarm center does not light, the
backup battery is OK.
If BATT flashes:
• Check the fuse on the alarm center. If it is blown, see
“Replacing the Fuse” on Page 19 and repeat this
step.
• The backup battery might have insufficient power.
Check the battery connections. If the connections are
OK, the battery will be automatically recharged. If it
does not recharge, replace it promptly.
14. Arm the alarm system by entering 1 2 3 4, then pressing
ARM. Then disarm by entering the duress code, 1 2 3 5.
The security dialer is triggered.
15. Use a flat-blade screwdriver to remove the screw from
the center of the AC outlet and discard the screw. Then
attach the AC adapter to AC outlet using the attached
screw to secure it and discourage tampering.
16. Disconnect the lamp from Terminals 15 and 16, then
connect the alarm siren’s and/or light’s negative (–)
wire(s) to Terminal 15 and connect the positive (+)
wire(s) to Terminal 16.
Your security system is ready to use!
Operation
ARMING THE SYSTEM
To arm the system, use any connected keypad to enter the
password then press ARM once, or simply press ARM twice.
If you enter the correct password and there are no activated
or faulted zones, ARMED on the keypad lights, and the alarm
system is armed. If you enter the wrong password, the sys-
tem does not arm.
Notes:
• While entering the password, if you enter an incorrect
digit before entering the last digit, you can press CAN-
CEL to cancel your previous entries, then enter the
password again.
• When you use a connected keypad, all other keypads
are locked out for 10 seconds after the last key press.
DISARMING THE SYSTEM
To disarm the system normally, use any connected keypad
to enter the password while the system is armed.
Note: When the system is in exit delay mode, press CAN-
CEL to disarm the system.
If you enter the correct password, ARMED on the keypad
turns off, and the alarm system is disarmed. If you enter the
wrong password, the system remains armed, but gives no
indication a wrong code was entered.
Note: If you enter the wrong password three times in a row,
the alarm center locks out all connected keypads for 5 min-
utes. This prevents an intruder from easily determining your
password by trying random combinations.
If your alarm system was activated while it was armed and
the alarm sounded, ARMED on the keypad flashes to show
that the alarm had sounded. To stop the alarm, enter the
password. To stop ARMED from flashing, press CANCEL.
If your alarm system was activated and the alarm sounds,
enter the duress code to disarm the system. The alarm
stops, but the security dialer still sends the emergency mes-
sage. To stop the security dialer, enter the password.
If the system is armed, opening the front cabinet or taking
the alarm center off the wall triggers the alarm. Make sure to
disarm the system before you open the cabinet or remove
the alarm center from the wall.
SOUNDING A PANIC ALARM
You can activate the alarm system’s panic alarm at any time,
even if the system is not armed.
To sound a panic alarm, press any installed panic button (if
you installed a panic/tamper zone) or press ENTER and
CANCEL at the same time on any remote keypad. The alarm
sounds and the system automatically arms.
CHANGING THE PASSWORD
Arm or disarm the alarm center by using the number keys on
the remote keypad to enter a four-digit password you
choose. The default password for the alarm center is 1234.
Follow these steps to enter a new password.
1. If the alarm center is armed, use the keypad to enter the
current password or 1 2 3 4 (the default password). The
alarm center is disarmed.
49-454.fm Page 16 Wednesday, January 17, 2001 10:37 AM

17Testing the System
2. Hold down SETUP on the keypad until ARMED and
READY slowly flash.
3. Within 30 seconds, enter the current password. If you
entered the correct password, ARMED and READY flash
quickly.
4. Enter a new password. ARMED and READY turn off.
Enter the new password again to confirm. If the system
accepts the password, READY flashes 3 times and the
system returns to standby mode. If you entered an incor-
rect password, ARMED flashes 3 times and the system
returns to standby mode.
The duress code will be same as the password + 1 (i.e.,
if the password is 1579, the duress code is 1570. If the
password is 1246, the duress code is 1247).
Note: If you do not enter the correct password within 30 sec-
onds in Steps 3 or 4, simply start again from Step 2.
To restore the default password (1 2 3 4), press PASSWORD
RESET on the alarm center.
USING ANNUNCIATE MODE
Annunciate mode lets you set the alarm system so it sounds
a brief pre-alarm if it detects any change in the assigned
zone.
1. If the system is disarmed and no zone is violated, hold
down SETUP for about 2 seconds. ARMED and READY
flash slowly.
2. Enter the current security code within 30 seconds.
ARMED and READY flash rapidly.
3. Press ANNC (annunciate) once. ARMED and READY
turn off.
4. To enable annunciate mode, press ENTER. READY
flashes 3 times. If the alarm system detects any change
in the assigned zone, it sounds a brief pre-alarm.
To disable annunciate mode, press CANCEL. READY flash-
es 3 times.
SETTING THE ENTRY AND EXIT DELAY
DELAY TIME ADJ lets you adjust how long the alarm system
waits before arming. If a sensor is activated in the Delayed
Zone, then reset while the pre-alarm is sounding, the alarm
will not sound. This gives you time to exit your home or office
after arming the system.
DELAY TIME ADJ also lets you adjust how long the alarm
system waits before sounding the alarm, to give you time to
disarm the system. During this period, the pre-alarm sounds.
Notes:
• The pre-alarm sounds when any sensor is activated in
the Delayed Zone. Use the pre-alarm as a reminder to
disarm the system.
• Be sure to set DELAY TIME ADJ while the alarm center is
disarmed.
There are six delay options can be selected. Rotate DELAY
TIME ADJ (10, 20, 30, 40, 50 or 55) to set the desired number
of minutes.
Note: The 50/55 second delay setting cannot be used for
UL-recognized installation.
SYSTEM RESET
Press SYSTEM RESET to reset the password, alarm, and
keypad.
Testin
g
the System
TESTING THE BATTERY
Although the alarm center automatically tests the backup
battery each time you arm and disarm the system and once
every 3 hours and 50 minutes, you can also press BATT
TEST on the alarm center to test the battery at any time. Test
the backup battery at least once per week.
Note: If you installed a new backup battery in the system,
wait 24 hours for the alarm system to charge it before manu-
ally testing it. While the battery is charging, BATT flashes.
When the battery is charged, BATT goes off.
When you press BATT TEST, check BATT for the condition
of the backup battery. Notes:
• If the battery is low, defective or disconnected when the
unit has AC power, the pre-alarm sounds for 5 seconds
every minute.
• Enter the password and press CANCEL to stop the pre-
alarm.
• After 3 hours 50 minutes, if the battery is still low or dis-
connected, the pre-alarm sounds again.
BATT Indicator Meaning
Lit AC power is low or off. Check the
AC adapter and AC power
Not lit The battery is fully charged.
Flashing slowly The battery is low.
Flashing rapidly The battery has insufficient power
due to one or more of the following
reasons:
• No battery installed.
• Faulty battery connection.
• The fuse inside the alarm cen-
ter is blown (see “Replacing
the Fuse” on Page 19).
• Battery is defective.
BATT Indicator Meaning
49-454.fm Page 17 Wednesday, January 17, 2001 10:37 AM

18 Testing the System
TESTING THE SIREN AND/OR LIGHTS
Important: Always notify local authorities, your neighbors,
and other people in your home or office before you test your
alarm system. In some areas, testing any part of your alarm
system might be considered a false alarm, which might be il-
legal in your area. Check your local regulations.
Hold down ENTER and CANCEL on the keypad at the same
time to test the alarm siren and/or lights connected to Termi-
nals 15 and 16. You should test these devices at least once
a week.
If the test lamp (see “Completing and Testing the Installa-
tion” on Page 14) or alarm/light does not work when you
press
ENTER and CANCEL, check the devices and their wir-
ing.
CHECKING THE INDICATORS
READY on the remote keypad indicates the condition of the
loops of sensors in all zones in the alarm system.
Note: If READY on the remote keypad is not lit, you must
find the activated sensor and reset it before you can arm the
alarm system.
ARMED on the remote keypad indicates if the alarm center is
armed and the arm status.
Note: When a sensor has been activated, ARMED continues
to flash, even if the siren or light has stopped sounding, until
you press CANCEL.
AC on the alarm center indicates the status of the AC power
being supplied to the alarm center.
WEEKLY SYSTEM CHECK
Test your alarm system each week to be sure that it works.
Important:
• For proper operation, make sure the alarm center’s door
is closed before plugging in the AC adapter.
• Always notify local authorities, your neighbors, and other
people in your home or office before you test your alarm
system. In some areas, testing any part of your alarm
system (if you do not follow Step 1) might be considered
a false alarm, because the alarm will sound. This might
be illegal in your area. Check your local regulations.
• If you connected an automatic telephone dialer to the
alarm center, notify the people and/or security company
whose numbers the device will call and get their prior
consent before you test your alarm system. Some secu-
rity companies charge a fee for test calls.
1. Disarm the system, disconnect any alarm siren or light
from Terminals 15 and 16 on the alarm center, then con-
nect the test lamp to the terminals.
2. Arm the system. ARMED on the keypad lights, and
READY flashes. If READY flashes, go to Step 3.
If READY does not flash, one or more sensors in the
Instant and/or Delayed Zones is activated or faulty.
Check each sensor in each zone and reset it until
READY lights.
3. Check the sensors installed in the Panic/Tamper Zone.
Disarm the system, then set off any sensor installed in
the Panic/Tamper Zone. The alarm center arms, ARMED
blinks, and the lamp you connected to Terminals 15 and
16 (alarm siren and light) lights for 4 minutes.
Reset the sensor you just set off, then disarm the sys-
tem.
Test the panic function of each installed remote keypad
by holding down both ENTER and CANCEL on the key-
pad. The alarm center arms, ARMED blinks, and the
lamp you connected to Terminals 15 and 16 (alarm siren
and light) lights for 4 minutes.
4. Press BATT TEST on the alarm center. If BATT on the
alarm center does not light, the backup battery is OK.
If BATT flashes:
• Check the fuse on the alarm center. If it is blown, see
“Replacing the Fuse” on Page 19 and repeat this
step.
• The backup battery might have insufficient power.
Check the battery connections. If the connections are
OK, the battery will be automatically recharged. If it
does not recharge, replace it promptly.
5. Disconnect the lamp from Terminals 15 and 16, then
connect the alarm siren’s and/or light’s negative (–)
wire(s) to Terminal 15 and connect the positive (+)
wire(s) to Terminal 16.
READY is: Meaning
Lit No sensors are activated.
Not lit One or more sensors in one or more loops has
been activated. This might indicate that a door or
window has been left open.
Flashing • The entry or exit delay is in progress.
• The system is in Setup mode.
ARMED is: Meaning
Lit The alarm system is armed.
Not lit The alarm system is disarmed.
Flashing •One of more sensors in one or more loops
has been activated and caused an alarm.
This might indicate that a door or window has
been left open.
• The system is in Setup mode.
AC is: Meaning
Lit AC power is normal.
Flickering or
off AC power is low (less than 95 VAC).
49-454.fm Page 18 Wednesday, January 17, 2001 10:37 AM

19Care
Care
To enjoy your RadioShack Two-Zone Burglar Alarm System
for a long time:
• Keep the alarm dry. If it gets wet, wipe it dry immediately.
• Use and store the alarm only in normal temperature
environments.
• Handle the alarm gently and carefully. Do not drop it.
• Keep the alarm away from dust and dirt.
• Wipe the alarm with a damp cloth occasionally to keep it
looking new.
Modifying or tampering with the alarm’s internal components
can cause a malfunction and might invalidate its warranty
and void your FCC authorization to operate it. If your alarm
is not performing as it should, take it to your local
RadioShack store for assistance.
REPLACING THE FUSE
If the alarm center does not operate, you might need to re-
place the fuse with a 3-amp fast-blow fuse, available at your
local RadioShack store.
Warning: Before you begin, unplug the AC adapter and dis-
connect the backup battery.
Caution: Fuses can fail for many reasons, including short
circuits, power surges, and improper installation. Check your
installation for short circuits or improper installation and cor-
rect any problems you find. Then, if the spare fuse fails after
you install it, contact your local RadioShack store.
1. While using a flat-blade screwdriver to press the slot on
the upper right side of the alarm center’s cover and your
thumb to press the oval on the lower right side of the
cover, pull the cover out to open it.
2. Pull the ribbon inside the cover. The fuse pops out.
3. If the fuse is blown, replace it.
Caution: Make sure you replace the fuse only with
another fuse of the same type and rating.
4. Wrap the ribbon around the new fuse, then insert the
fuse into the fuse holder.
5. Reconnect the battery.
6. Close the alarm center’s cover.
7. Reconnect the AC adapter.
RESETTING THE AC ADAPTER’S
CIRCUIT BREAKER
The AC adapter has a circuit breaker to protect itself from an
overload. If an overload occurs, RESET pops out, the AC
adapter stops supplying power, and AC POWER on the alarm
center turns off.
Warning: Before you reset the circuit breaker, unplug the
AC adapter and disconnect the backup battery.
Caution: Circuit breakers can trip for many reasons, includ-
ing short circuits, power surges, and improper installation.
Check your installation for a short circuit or improper installa-
tion and correct any problems you find. Then reconnect the
battery and AC adapter and try to reset the AC adapter’s cir-
cuit breaker. If the circuit breaker fails to reset, contact your
local RadioShack store.
To reset the circuit breaker, press RESET back into the AC
adapter until it stops.
49-454.fm Page 19 Wednesday, January 17, 2001 10:37 AM

49-454
AO0028ABA1
01A01
Printed in China
RadioShack Corporation
Fort Worth, Texas 76102
Specifications
Exit and Entry Delay Control Time .......................................................................................................................... 10–55 seconds, adjustable
Multiple Incorrect password Lockout Time ....................................................................................................................................... 5 minutes
Program Mode Time-Out ................................................................................................................................................................ 30 seconds
Key Press Lock Time ..................................................................................................................................................................... 10 seconds
Automatic Alarm Reset Time ............................................................................................................................................................ 4 minutes
Trigger Resistance:
NC ............................................................................................................................. Loop will trigger alarm if resistance exceeds 500 Ohms
NO ................................................................................................................... Loop will trigger alarm if resistance is less than 50,000 Ohms
Loop Resistance:
NC ........................................................................................................................................................................................... 500 Ohms Max.
NO ....................................................................................................................................................................................... 50,000 Ohms Min.
Power Consumption (Armed):
(One Keypad Installed) ............................................................................................................................................................................. 12 W
(One Keypad Installed and 750 mA Accessory Load) .............................................................................................................................. 23 W
Backup Battery ...................................................................................................................................................... 12 volt, rechargeable, 4 Ah
External Alarm Output (Terminal 16) .............................................................................................................................. 10–18V DC, 1A Max.
Auxiliary DC Output (Terminal 14) .......................................................................................................................... 10–18V DC, 750 mA Max.
Alarm Relay Contact Capacity ..................................................................................................................................................... 24 V DC 1A
Fuse Type ................................................................................................................................................................... 3A, 1 ¼-inch, Fast-Blow
Maximum Size of Backup Battery (HWD) ....................................................................................................................41/8 × 23/4 × 39/16 Inches
(105 × 70 × 90 mm)
Operating Temperature ................................................................................................................................................................ 32 to 122° F
(0 to 50° C)
Storage Temperature .................................................................................................................................................................. –40 to 149° F
(–40 to 65° C)
Dimensions (HWD) ........................................................................................................................................................41/4 × 82/5 × 94/5 Inches
(108 × 212.5 × 250 mm)
Specifications are typical; individual units might vary. Specifications are subject to change and improvement without notice.
Limited Ninety-Day Warranty
This product is warranted by RadioShack against manufacturing defects in material and workmanship under normal use for ninety (90) days from the date of purchase
from RadioShack company-owned stores and authorized RadioShack franchisees and dealers. EXCEPT AS PROVIDED HEREIN, RadioShack MAKES NO EXPRESS
WARRANTIES AND ANY IMPLIED WARRANTIES, INCLUDING THOSE OF MERCHANTABILITY AND FITNESS FOR A PARTICULAR PURPOSE, ARE LIMITED IN
DURATION TO THE DURATION OF THE WRITTEN LIMITED WARRANTIES CONTAINED HEREIN. EXCEPT AS PROVIDED HEREIN, RadioShack SHALL HAVE NO
LIABILITY OR RESPONSIBILITY TO CUSTOMER OR ANY OTHER PERSON OR ENTITY WITH RESPECT TO ANY LIABILITY, LOSS OR DAMAGE CAUSED DI-
RECTLY OR INDIRECTLY BY USE OR PERFORMANCE OF THE PRODUCT OR ARISING OUT OF ANY BREACH OF THIS WARRANTY, INCLUDING, BUT NOT LIM-
ITED TO, ANY DAMAGES RESULTING FROM INCONVENIENCE, LOSS OF TIME, DATA, PROPERTY, REVENUE, OR PROFIT OR ANY INDIRECT, SPECIAL,
INCIDENTAL, OR CONSEQUENTIAL DAMAGES, EVEN IF RadioShack HAS BEEN ADVISED OF THE POSSIBILITY OF SUCH DAMAGES.
Some states do not allow limitations on how long an implied warranty lasts or the exclusion or limitation of incidental or consequential damages, so the above limitations
or exclusions may not apply to you.
In the event of a product defect during the warranty period, take the product and the RadioShack sales receipt as proof of purchase date to any RadioShack store. Ra-
dioShack will, at its option, unless otherwise provided by law: (a) correct the defect by product repair without charge for parts and labor; (b) replace the product with one of
the same or similar design; or (c) refund the purchase price. All replaced parts and products, and products on which a refund is made, become the property of Ra-
dioShack. New or reconditioned parts and products may be used in the performance of warranty service. Repaired or replaced parts and products are warranted for the
remainder of the original warranty period. You will be charged for repair or replacement of the product made after the expiration of the warranty period.
This warranty does not cover: (a) damage or failure caused by or attributable to acts of God, abuse, accident, misuse, improper or abnormal usage, failure to follow in-
structions, improper installation or maintenance, alteration, lightning or other incidence of excess voltage or current; (b) any repairs other than those provided by a Ra-
dioShack Authorized Service Facility; (c) consumables such as fuses or batteries; (d) cosmetic damage; (e) transportation, shipping or insurance costs; or (f) costs of
product removal, installation, set-up service adjustment or reinstallation.
This warranty gives you specific legal rights, and you may also have other rights which vary from state to state.
RadioShack Customer Relations, 200 Taylor Street, 6th Floor, Fort Worth, TX 76102
We Service What We Sell
12/99
49-454.fm Page 20 Wednesday, January 17, 2001 10:37 AM