Regency U41 Gas Insert Lp3 Users Manual 908 727.PMD
U41-LP3 to the manual 7d9edca3-255a-4cdf-9e36-85f525039dc0
2015-02-06
: Regency Regency-U41-Gas-Insert-U41-Lp3-Users-Manual-522644 regency-u41-gas-insert-u41-lp3-users-manual-522644 regency pdf
Open the PDF directly: View PDF
.
Page Count: 24

WARNING:
If the information in these instructions are not followed exactly
,
a fire or explosion may result causing property damage
,
personal injury or loss of life.
FOR YOUR SAFETY
Do not store or use gasoline or other flammable vapors an
d
liquids in the vicinity of this or any other appliance.
Installation and service must be performed by a qualifie
d
installer, service agency or the gas supplier.
FOR YOUR SAFETY
What to do if you smell gas:
!!
!!
!Do not try to light any appliance
!!
!!
!Do not touch any electrical switch
:
do not use any phone in you
r
building.
!!
!!
!Immediately call your gas supplie
r
from a neighbour's phone. Follow
the gas supplier's instructions.
!!
!!
!If you cannot reach your ga
s
supplier, call the fire department.
FPI FIREPLACE PRODUCTS INTERNATIONAL LTD. 6988 Venture St., Delta, BC Canada, V4G 1H4
908-727
MODELS: U41-NG3 Natural Gas U41-LP3 Propane
10/08/03
U41 Gas Insert
Owners &
Installation Manual
www.regency-fire.com
Tested by: Installer: Please complete the details on the back cover
and leave this manual with the homeowner.
Homeowner: Please keep these instructions for future reference.

2Regency U41-3 ULTIMATE Gas Fireplace Insert
Note: Oversize faceplate 44-1/4" x 31-1/8"
Extra Oversize Faceplate 50-1/4" x 35-1/8"
TO THE NEW OWNER
Congratulations! You are the owner of a state-of-the-art Gas Insert by FIREPLACE PRODUCTS
INTERNATIONAL LTD. The Regency ULTIMATE Gas Fireplace Series of hand crafted appliances
has been designed to provide you with all the warmth and charm of a fireplace, at the flick of a switch.
The models U41-NG3 and U41-LP3 of this series have been approved by Warnock Hersey for both
safety and efficiency. As it also bears our own mark, it promises to provide you with economy, comfort,
and security for many trouble free years to follow. Please take a moment now to acquaint yourself
with these instructions and the many features of your Regency Fireplace.
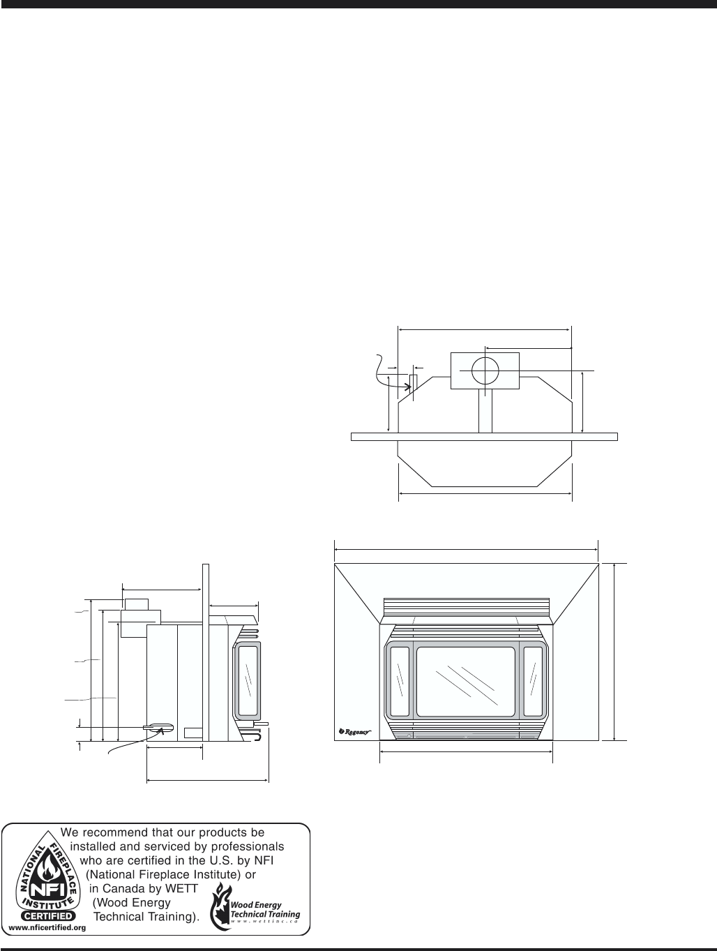
REGENCY
GAS FIREPLACE INSERT
gas inlet
pipe on the
appliance
7-5/8"
(194mm)
13-1/8"
(333mm)
19-1/2"(495mm)
21-1/2"
(546mm)
22-1/2"
(572mm)
20"
(508mm)
1-7/8"
(48mm)
9-1/2"
(241mm)
29-1/4"(743mm)
44-3/8"(1127mm)
28-5/16"
(719mm)
29-1/4" (743mm)
13-1/4"(336mm)
26-1/2" (673mm)
3-1/4"
(83mm)
8-1/2"
(216mm)
10-1/2"
(267mm)
gas inlet
pipe on the
appliance

3
Regency U41-3 ULTIMATE Gas Fireplace Insert
TABLE OF CONTENTS
REGENCY ULTIMATE GAS FIREPLACE INSERT
SAFETY LABEL
Safety Labels ............................................ 4
INSTALLATION REQUIREMENTS
For your safety ................................................ 5
Gas Pipe Testing............................................. 5
Specifications .................................................. 5
Installation into a Factory Built Fireplace ......... 5
Installation into Zero Clearance Fireplace ......... 5
Before You Start ................................................ 5
General Safety Information ................................ 5
Materials Required ........................................... 5
Installation Checklist........................................ 6
Clearances
-Minimum Fireplace Clearances ............... 6
-Clearances to Combustibles.................... 6
-Clearances to Combustible Mantels .......... 7
INSTALLATION INSTRUCTIONS
System Data Table ........................................... 7
High Elevation.................................................... 7
Gas Connection .............................................. 8
Draft Hood Connection .................................... 8
Combustion and Ventilation Air ......................... 8
Venting ............................................................ 8
Gas Pressure Test............................................ 9
Aeration System ................................................ 9
Test For Flue Spillage ....................................... 9
Faceplate & Trim Installation ........................... 10
Log Installation................................................. 11
Door Installation & Door Latches..................... 11
Optional Remote Control Installation ............... 12
Optional Wall Thermostat Installation.............. 12
Final Check............................................... 12
Wiring Diagram ............................................. 13
OPERATING INSTRUCTIONS
Operating Instructions ..................................... 14
Lighting Procedure .......................................... 14
Shutdown Procedure ...................................... 14
First Fire .......................................................... 14
Automatic Convection Fan Operation ............. 14
Copy of Lighting Plate Instructions .................. 15
Normal Operating Sounds of Gas Appliances. 16
MAINTENANCE
Maintenance .................................................... 16
Log Replacement ............................................ 17
Gold Plated Doors ........................................... 17
Door Gasket and Glass Gasket ...................... 17
Latch Adjustment ............................................ 17
Glass Replacement ........................................ 17
- Mitred Door.............................................. 17
- Panel Door .............................................. 17
Fan Maintenance ............................................. 18
-Replacing fan ........................................... 18
Parts List ......................................................... 19
WARRANTY
Warranty ......................................................... 23

4Regency U41-3 ULTIMATE Gas Fireplace Insert
This is a copy of the label that accompanies
each Regency ULTIMATE Gas Insert. We
have printed a copy of the contents here for
your review. The safety label is located on
the right side door panel.
NOTE: Regency units are constantly being
improved. Check the label on the unit and if
there is a difference, the label on the unit is
the correct one.
SAFETY LABEL
For the State of Massachusetts, installation
and repair must be done by a plumber or
gasfitter licensed in the Commonwealth of
Massachusetts.
For the State of Massachusetts, flexible
connectors shall not exceed 36 inches in
length.
For the State of Massachusetts, the appli-
ances individual manual shut-off must be a
t-handle type valve.

5
Regency U41-3 ULTIMATE Gas Fireplace Insert
Fireplace Trim Kit, Part # 610-940, is available.
If the factory built fireplace height is too
low for your Insert, you may remove the
smoke shelf, baffle plate, and damper
plate from the factory built fireplace if
removable without cutting or torching,
as long as these items are saved and are
re-installed in the event that the Insert is
removed.
INSTALLATION INTO
ZERO CLEARANCE
FIREPLACES
The ULTIMATE Gas Inserts are only approved
for installation into the ULTIMATE Gas
Insert Zero Clearance Fireplace Kit, mod-
el # 660-900.
BEFORE YOU START
Safe installation and operation of this appliance
requires common sense, however, we are
required by the Canadian Safety Standards
and ANSI Standards to make you aware of the
following:
General Safety Information
1) The appliance installation must conform
with local codes or in the absence of local
codes, with current CAN/CGA B149 (in
Canada) or the current National Fuel Gas
Code ANSI Z223.1. This appliance MUST be
installed by a qualified gas fitter technician
only.
2) Installation and repair should be done
by a qualified service person.
3) The appliance should be inspected before
use and at least annually by a professional
service person. More frequent cleaning
may be required due to excessive lint from
carpeting, bedding material, etc. It is imper-
ative that control compartments, burners
and circulating air passageways of the
appliance be kept clean and free from
excessive lint from carpeting.
4) See general construction and assembly
instructions. This appliance may only be
installed in a vented, non-combustible fire-
place. The appliance and vent should be
enclosed when installed in or passing
through a living area, where children may
come in contact with it.
5) This appliance is Listed for bedroom instal-
lations when used with a Listed Millivolt
IMPORTANT:
SAVE THESE
INSTRUCTIONS
The Regency Gas Fireplace must be installed
in accordance with these instructions. Care-
fully read all the instructions in this manual first.
Consult the building authority having jurisdic-
tion to determine the need for a permit prior to
starting the installation.
Note: Failure to follow these instruc-
tions could cause a malfunction of
the heater which could result in
death, serious bodily injury, and/
or property damage. Failure to
follow these instructions may also
void your fire insurance and/or
warranty.
FOR YOUR SAFETY
This appliance requires air for proper combus-
tion. Always provide adequate combustion
and ventilation air. Follow instructions and
information in the current CAN/CGA B149 (in
Canada) or the current National Fuel Gas Code
ANSI Z223.1 (in the USA), regarding require-
ments for combustion and ventilation air.
GAS PIPE TESTING
The appliance must be isolated from the gas
supply piping system by closing its individual
manual shutoff valve during any pressure
testing of the gas supply piping system at test
pressures equal to or less than 1/2 psig. (3.45
kPa).
SPECIFICATIONS
Fuel: Natural gas or Propane
Electrical: 120V A.C. system.
Fan/Blower: Variable speed, 125/75 CFM.
Log Sets: Ceramic fiber, 3 per set.
Vent System: Listed minimum 4" B-Vent or
listed double thickness
aluminium flex liner.
INSTALLATION INTO A
FACTORY BUILT
FIREPLACE
The ULTIMATE Gas Inserts have been tested
and approved to be vented into any approved
Factory Built Fireplace that will allow the Insert
to physically fit into the firebox. A Factory Built
INSTALLATION
Thermostat. Some areas may have further
requirements, check local codes before
installation.
6) This unit is not approved for installation into
a mobile home.
7) Always connect this fireplace to a chimney
and vent to the outside of the building
envelope. Never vent to another room or
inside a building. Make sure that the vent is
properly sized and is of adequate height to
provide the proper draft.
8) Inspect the venting system annually for
blockage and any signs of deterioration.
9) Any safety glass removed for servicing
must be replaced prior to operating the
appliance.
10)To prevent injury, do not allow anyone who
is unfamiliar with the operation to use the
fireplace.
11)Due to high temperatures, the appliance
should be located out of high traffic areas
and away from furniture and draperies.
Children and adults should be alerted to the
hazards of high surface temperatures,
especially the fireplace glass and gold trims,
and should stay away to avoid burns or
clothing ignition. Young children should be
carefully supervised when they are in the
same room as the appliance. Clothing or
other flammable material should not be placed
on or near the appliance.
12) WARNING: Failure to position the parts
in accordance with the diagrams in
this manual or failure to use only parts
specifically approved with this appli-
ance may result in property damage
or personal injury.
13) WARNING: Operation of this appliance
when not connected to a properly installed
and maintained venting system or tamper-
ing with the blocked vent shut-off system
can result in carbon monoxide (CO) poison-
ing and possible death.
14)This appliance needs fresh air for safe
operation and must be installed so there are
provisions for adequate combustion and
ventilation air.
MATERIALS
REQUIRED
No electrical power supply is required for the
gas control to operate. A 120 Volt AC power
Emissions from burning wood or gas could
contain chemicals known to the State of
California to cause cancer, birth defects or
other reproductive harm.

6Regency U41-3 ULTIMATE Gas Fireplace Insert
cord is hooked up to the fan switch and blower.
Plug 3 wire cord into a suitable receptacle. Do
not cut the ground terminal off under any
circumstances.
When connected with 120 volts, the appliance
must be electrically grounded in accordance
with local codes, with a current version of CSA
C22.1 (in Canada) or in the absence of local
codes, with the National Electrical Code ANSI/
NFPA 70-1987.
Note: This unit is equipped with a heat
sensor thermodisc which will
prevent the blower from operat-
ing until the unit reaches the cor-
rect temperature.
INSTALLATION
CHECKLIST
The Regency Gas Insert is installed as listed
below.
1) Unit Location - check Clearances to Com-
bustibles on pages 6 and 7.
2) Make the gas connections and electrical
connection for fan and vent spill switch.
See page 8.
3) Install the flue or liner to the sliding draft
hood. See page 8.
4) Install Venting, page 8. Slide the unit into the
fireplace and level. Attach draft hood to the
insert.
5) Test gas pressure, page 9. Check aeration,
page 9.
6) Test for flue spillage, page 9.
7) Assemble and install the faceplate and trim.
See page 10.
8) Install the log set. See page 11.
9) Install Doors. See page 11.
10)Install Optional Remote Control, and Op-
tional Wall Thermostat, page 12.
11)Explain controls to the homeowner.
12) Final check: Before leaving this unit with
the customer, the installer must ensure that
the appliance is firing correctly. This in-
cludes:
a) Clocking the appliance to ensure the
correct firing rate.
b) Adjusting the primary air, if required,
to ensure that the flame does not
carbon. See page 9.
c) Ensuring that the appliance is vent-
ing correctly. See page 8.
INSTALLATION
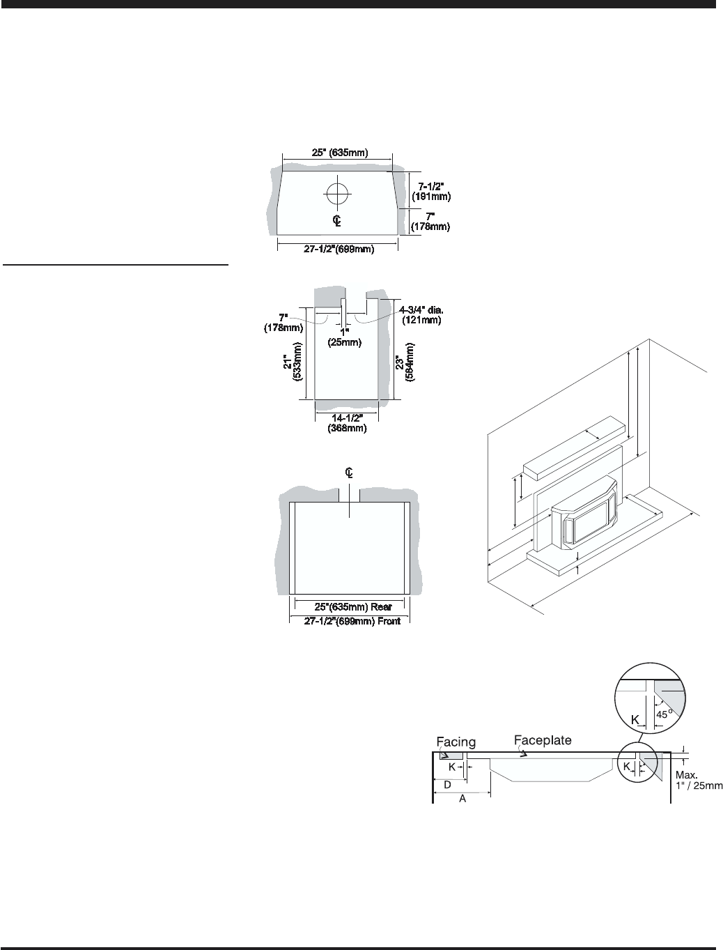
CLEARANCES
I
G
J
H
A
D
B
E
F
C
Top View
Clearances to Combustibles
From Unit
Sides A 7.5" / 190 mm
Ceiling B 35" / 890 mm
Mantel C(My) 11 / 280 mm
From Surround
Sides D 2" / 50 mm
Ceiling E 25.5" / 650 mm
Mantel F 3" / 75 mm
Min. Alcove Width J 48" / 1120 mm
Mantel Depth G(Mx) 7.5" / 190 mm
Facing (Mantel Leg)
Side* K 1" / 25 mm
Top L 1" / 25 mm
Minimum Fireplace Clearances
The minimum fireplace clearances for the Re-
gency gas fireplace insert are shown in the
following diagrams:
*Max. width of 1" at 1" from surround, calculate
depth at 45o as shown in the diagram.

7
Regency U41-3 ULTIMATE Gas Fireplace Insert
Burner Inlet Orifice Sizes:
Natural Gas
Burner #33
Max. Input Rating - Natural Gas 34,000 btu/h
Min. Input Rating - Natural Gas 18,000 btu/h
Output Capacity with blower Off
Natural Gas 24,786
Max. Output Capacity with blower On
Natural Gas 26,146
System Data
For 0 to 2000 feet altitude
Burner Inlet Orifice Sizes:
Natural Gas Propane
Burner #32 #50
*Above 2000 ft. see National Code Orifice Chart.
Max. Input - Natural Gas/Propane 38,000 btu/h
Min. Input - Natural Gas/Propane 20,000 btu/h
Min. Output Capacity with blower Off
Natural Gas 27,550 btu/h
Propane 27,778 btu/h
Max. Output Capacity with blower On
Natural Gas 29,184 btu/h
Propane 29,260 btu/h
Supply Pressure: Natural Gas min. 5" w.c.
Propane min. 12" w.c.
Manifold Pressure
Natural Gas 3.8" +/- 0.2" w.c.
Propane 11" +/- 0.2" w.c.
System Data - HIGH ELEVATION
For 2,000 - 4,500 feet altitude
HIGH ELEVATION
This unit is approved in Canada for altitude 2000 ft. to 4500 ft. (CAN/CGA-
2.17-M91) with the orifice kit Part # 611-975. For Natural Gas installations
above 4500 ft. follow current CAN/CGA-B149.1.
In U.S.A., for installations above 2000 ft. refer to current ANSI Z223.1 Sc8-
8.1.2a appendix F, for resizing orifice.
INSTALLATION
Combustible Mantel Clearances
Depth (Mx) 5-1/2" 6" 6-1/2" 7" 7-1/2" 8" 8-1/2" 9" 9-1/2"
Clearance (My) 11" 11-3/8" 11-3/4" 12-1/4" 12-1/2" 12-5/8" 12-3/4" 12-7/8" 13"
Non-combustible Hearth Extension
Height (Hy) 0" 5/8" 1-1/4" 1-7/8" 2-3/8" 2-3/4" 3-1/8" 3-1/2" 3-3/4" 4"
Depth (Hx) 25" 24" 23" 22" 21" 20" 19" 18" 17" 16"
Note: A non-combustible mantel may be installed at a lower height if the framing is
made of metal studs covered with a non-combustible board.

8Regency U41-3 ULTIMATE Gas Fireplace Insert
DRAFT HOOD
CONNECTION
1) Attach the vent to the flue collar on the
detachable draft hood. The flue collar of the
appliance will fit inside a standard vent and
may be fastened directly to the vent by
sheet metal screw or a B-Vent, single wall
vent connector.
2) Before pushing the appliance into position
inside the fireplace, align the draft hood
with the guides on the insert top and push
forward. While pushing the unit back into
place keep pulling the draft hood forward
until the screw hole in the spill tube-rear
aligns with the screw hole in the spill tube-
front. (If screw holes do not line up then
draft hood is not positioned correctly.)
Secure the two spill tubes with a screw.
Note: Final gas connection should be
after unit is in place to
avoid damage to line
when pushing the
unit into position.
Draft Hood
Flue
g
uides
screw
holes
Spill Tube
Rear
Spill Tube
Front
INSTALLATION
1) If the appliance is to be installed into an
existing chimney system, thoroughly clean
the masonry fireplace and have the chim-
ney swept.
GAS CONNECTION WARNING:
Only persons licensed to work
with gas piping may make the
necessary gas connections to
this appliance.
GAS CONNECTION
For minimum and maximum supply pressure
see the System Data table on page 7.
Note: Prior to any pressure testing of
the gas supply piping system that
exceeds test pressures of 1/2
psig, this appliance and its individ-
ual shut-off valve must be discon-
nected from the piping system. If
test pressures equal to or less
than 1/2 psig are used then this
appliance must be isolated from
the piping system by closing its
individual manual shut-off valve
during the testing.
Valve Access: Loosen and remove the wing-
nuts on the both sides of the bottom louver and
then remove the louver.
2) The gas connection is a 3/8" NPT male pipe
on the rear left side of the unit. The gas line
can be rigid pipe or to make installation
easier use a listed flexible connector and
manual shut-off valve if allowed by local
building codes. A 1/2" gas supply pipe must
be brought near this inlet hole.
3) Locate the center point where the vent will
pass through the chimney above the appli-
ance. Move the appliance into the exact
location where it is to be installed. Ensure
that the Insert is level.
4) The gas control valve is provided with two
"IN" and "OUT" pressure taps, and are
easily accessible for a test gauge connec-
tion (see diagram on page 9).
5) Once the gas has been connected ensure
that the pilot valve is in line with burner.
CAUTION: If the door is removed or
opened for servicing, it must be replaced
and closed prior to operating the appli-
ance. The glass must be fixed in the door
when operating.
COMBUSTION &
VENTILATION AIR
WARNING: This appliance needs fresh air
for safe operation and must be installed
with provisions for adequate combus-
tion and ventilation air available to the
room in which it is to be operating.
Follow CAN/CGA B149 (in Canada) or ANSI
Z223.1 (in the USA) requirements, and any
local codes or regulations of the enforcing
authority.
Air for combustion is drawn in through the front
of the unit, therefore, the front of the unit must
be kept clear of any obstructions.
VENTING
THE APPLIANCE MUST NOT BE CON-
NECTED TO A CHIMNEY FLUE SERV-
ING A SEPARATE SOLID FUEL BURN-
ING APPLIANCE.
This appliance is designed to attach to a 4"
diameter type B-Vent or double thickness alu-
minium flex liner running the full length of the
chimney. A minimum flue height of 12 feet is
recommended. B-Vent must be supported by a
vent support - supplied by vent manufacturer.
There must be at least 3 feet of chimney above
the roof level.
Stack the pipe onto your finish support to a
minimum height of 3 feet above the roof pene-
tration, or 2 feet above any point within 10 feet
measured horizontally. B-Vent chimneys re-
quire a 1" clearance to combustibles.

9
Regency U41-3 ULTIMATE Gas Fireplace Insert
INSTALLATION
9 for spillage test.)
Before installing vent system ensure that the
damper plate is locked into the open position and
secure to prevent the damper plate from falling
down and crushing the liner.
GAS PRESSURE TEST
The unit is preset to give the correct gas input
at the specified manifold pressures shown on
the label. The maximum gas manifold pressure
is:
Natural Gas: 3.8" w.c.
Propane 11" w.c.
The manifold pressure is controlled by a regu-
lator built into the gas control, and should be
checked at the pressure test point. The pres-
sure check should be carried out with the unit
burning and the setting should be with in the
AERATION SYSTEM
The burner aeration is factory set but may need
adjusting due to either the local gas supply, air
supply or altitude.
Natural Gas: 3/16" open
Propane: 1/2" open
The aeration adjustment gears are located on
the right side of the burner box and can be
accessed from the side or from the front when
the louvers are removed.
limits specified.
Note: Use the same manner to check the
inlet pressure.
The Regency Insert incorporates its own inter-
nal draft hood, so no additional external draft
hood is required. Periodically check that the
vent is unrestricted
and an adequate
draft is present
when the unit is in
operation. (See page
To adjust the aeration: use the allen key to turn
the turning gear which will adjust the air shutter.
Open the air shutter for a blue flame or close it
for a yellower flame.
Clockwise to open,
counter-clockwise to close.
Caution: Carbon will be produced if the
air shutter is closed too much.
Note: Any damage due to carboning re-
sulting from improperly setting
the aeration controls is NOT cov-
ered under warranty.
Note: Aeration Adjustment should only
be performed by an authorized
Regency Installer at the time of
installation or service.
TEST FOR FLUE
SPILLAGE
A “spillage” test must be made before the
installed unit is left with the customer. Follow
the procedure below:
1) Start all exhaust fans in the home and then
close all doors and windows in the room.
2) Light the unit and set controls to maximum.
Turn fan off.
3) After five minutes, test that there is a “pull”
on the flue by placing a smoke match,
cigarette or similar device which gives off
smoke, in front of the spill tube. To ensure
a valid test, place a scrap piece of sheet
metal (or other non-combustible material)
between the spill tube and the upper lou-
ver, this will prevent the natural convection
of the unit from interfering with the test. See
diagrams below.
normal draft downdraft or
blocked flue
Spill T ube
Non-combustib
le
Scrap
The smoke should be drawn into the spill tube,
if it does not, leave the unit for a further five
minutes and retest as above. If the smoke is still
not drawn into the spill tube, turn the unit off and
check for the cause of the lack of draft. If
necessary, seek expert advice.
For wind turbulent sites, a wind cap may
remedy the problem.
Note: The thermally activated safety
switch will sense the change in

10 Regency U41-3 ULTIMATE Gas Fireplace Insert
INSTALLATION
3) Using the trim clips provided, join the left
side gold trim (the one with the ON/OFF
switch and variable speed FAN switch) to
the top gold trim. See diagram 2. Repeat this
step for right side.
8) Fan Switch wires: Connect the plug end
from the fan switches to the matching plug
from the unit. See Diagram 5. Make sure the
plugs are pushed together as far as they
can go. Push the connection into the hole in
the side of the insert so it is locked into place.
9) ON/OFF wires: Hook up the ON/OFF wires
to the switch on the left side trim. Diagram
5.
Diagram 3
Diagram 4
Diagram 5
FACEPLATE AND TRIM
INSTALLATION
Hint: Before doing the faceplate installa-
tion, leave the Insert out approximate-
ly 4" so wires may be hooked up more
easily.
1) Lay the faceplate panels flat, face down on
something soft so they don't scratch.
2) Take the top faceplate and align the holes
in it with the holes in the side panels.
Attach, using the screws provided. See
diagram 1.
Diagram 1
Diagram 2
temperature and shut down the
gas valve in the event of a severe
downdraft of air or a blocked or
disconnected vent. The switch
acts as a safety shut-off to pre-
vent a build up of carbon monox-
ide. If the flue is blocked or has no
"draw", the switch will automati-
cally shut off the supply of gas
within 5 - 10 minutes. Tampering
with the switch can result in car-
bon monoxide (CO) poisoning and
possible death.
If the heater turns off because of
lack of draft during the spillage
test, check for the cause and if
necessary, seek expert advice.
The thermally actuated safety
switch will automatically reset
after it has reduced in tempera-
ture. The switch will continue to
cycle until the draft problem is
corrected. DO NOT BYPASS OR DIS-
CONNECT THIS SWITCH.
Note: The holes in the top panel are slight-
ly larger than the holes in the side
panel to facilitate easier installa-
tion.
Hint: Don't tighten the screws down complete-
ly at this point, first do a trial fit to the unit. Make
any necessary adjustments and when it fits
properly then tighten down the screws.
4) Place the trim on the assembled faceplate
panels, aligning the wires from the switch-
es with the notch in the left side faceplate
panel.
The power cord should be run behind the
faceplate panel.
5) Push the Regency logo plate into the two
holes in the bottom left corner of the face-
plate.
6) Secure the brass trim to the faceplate by
drilling a 1/8" hole through into the faceplate
side flange, using the hole in the brass trim
as a guide. Now fasten with the two brass
plated screws provided.
7) Lift the assembled faceplate up and over
the top of the insert and then lower it down
so the faceplate tabs are in line with the
faceplate brackets. See diagram 3. Once
everything is properly lined up you can
tighten the 4 screws on the faceplate
brackets. See diagram 4.
Note: If you are making custom face-
plates, you must use the faceplate
louvers. Failure to do so will void
the certification on your unit. The
faceplate louvers can be purchased
separately.

11
Regency U41-3 ULTIMATE Gas Fireplace Insert
DOOR INSTALLATION
(Packaged Separately)
1) Open the two side doors.
2) Slide the door onto the two hinge pins
making sure the two pieces are flush to-
gether. See diagram 1.
Diagram 1
Diagram 3
Diagram 2
Diagram 4
Diagram 2
Diagram 1
Diagram 3
LOG INSTALLATION
Note: Do not force logs down.
INSTALLATION
3) Place the left front log, carefully sliding it
down onto the left pins of the front burner.
See diagram 2.
4) Place the right front log, carefully sliding it
down onto the right pins of the front burner.
See diagram 3.
5) Distribute the embers along the front burner
but do not cover the burner ports and
around the logs. Place the large embers on
the floor of the firebox. Place the lava on the
burner tray in front of the left and right front
logs. See diagram 4.
WARNING: Dangerous operating condi-
tions may occur if these logs are not
positioned in their approved locations.
Read the instructions below carefully and
refer to the diagrams. If logs are broken
do not use the unit until they are replaced.
Broken logs can interfere with the pilot
and burner operation.
The gas log kit contains the following:
a) Front Right Log - Part # 902-245
b) Front Left Log - Part # 902-244
c) Rear log - Part # 902-246
d) Embers - Part # 902-151 (2 bags)
e) Lava - Part # 902-154 (1 bag)
(Part # 653-930 for the set of three logs)
1) Remove the logs from the box and carefully
unwrap them. The logs are fragile, handle
with care - DO NOT FORCE into position.
2) Place the rear log, carefully sliding it down
onto the pins, with the flat side of the log
facing the back of the unit. See diagram 1.
3) Close the door. The latch plate must be
centered around the alignment pin. See
diagram 2. If the latch plate interferes with
the corner of the stove you may want to
angle the plate slightly so the door closes
more easily.
4) The latches should already be at the proper
setting. If they are too hard or too easy to
close, you may want to adjust them by
turning the latch. See diagram 3.
5) Remove the blue plastic protective coating.
6) Test the seal around the door by placing a
piece of paper between the unit and the
door, close the door and try to pull the paper
out. If it slips out easily, then the door is not
properly
sealed. Turn
the adjustable
catch to tight-
en or loosen the
latch. See diagram 3.
Note: The door latch
may require
adjustment as
the door gasket material com-
presses after a few fires and after
glass replacement. Turn the latch
to tighten or loosen the latch.

12 Regency U41-3 ULTIMATE Gas Fireplace Insert
14 GA.
16 GA.
18 GA.
20 GA.
22 GA.
50 Ft.
32 Ft.
20 Ft.
12 Ft.
9 Ft.
Recommended Maximum Lead Length
(Two-Wire) When Using Wall
Thermostat (CP-2 System)
Wire Size Max. Length
INSTALLATION
Thermostat Wire Table
OPTIONAL WALL
THERMOSTAT
A wall thermostat may be installed if desired.
Connect the wires as per the wiring diagrams.
Note that the wires are connected to the "TH"
on the gas valve. Use table on page 14 to
determine the maximum wire length:
Note: Preferable if the thermostat is in-
stalled on an interior wall.
Regency offers an optional programmable ther-
mostat but any 250-750 millivolt rated non-
anticipator type thermostat that is CSA, ULC or
UL approved may be used.
CAUTION
Do not connect the millivolt
wall thermostat wires
to the 120V wires.
OPTIONAL REMOTE
CONTROL
Use the Regency Remote Control Kit approved
for this unit. Use of other systems may void
your warranty.
The remote control kit comes with a hand held
transmitter, a receiver and a wall mounting
plate.
1) Choose a convenient location on the wall to
install the receiver and the receptacle box
(protection from extreme heat is very im-
portant). Run wires from the fireplace to
that location, use Thermostat Wire Table.
2) Connect the wires as per the wiring dia-
gram above.
CAUTION
Do not connect the millivolt
remote control wires to
the 120V wires.
3) Install 3 AAA alkaline batteries in transmit-
ter and 4 AA alkaline batteries in the
receiver. Install the receiver and its cover
in the wall. Switch the remote receiver to
"remote" mode. The remote control is now
ready for operation.
FINAL CHECK
Before leaving this unit with the customer, the
installer must ensure that the appliance is firing
correctly. This includes:
1) Clocking the appliance to ensure the cor-
rect firing rate (rate noted on label) at 15
minutes.
2) If required, adjusting the primary air to
ensure that the flame does not carbon. First
allow the unit to burn for 15 min. to stabilize.
CAUTION
Any alteration to the product that causes
sooting or carboning that results in dam-
age to the exterior facia is not the respon-
sibility of the manufacturer.
3) Ensuring that the appliance is venting cor-
rectly. See page 8.

13
Regency U41-3 ULTIMATE Gas Fireplace Insert
WIRING DIAGRAM
CAUTION: Label all wires prior to
disconnection when servicing con-
trols. Wiring errors can cause im-
proper and dangerous operation.
WARNING: Electrical Grounding Instructions
This appliance is equipped with a three pronged (grounding) plug for your protection against shock hazard and should be
plugged directly into a properly grounded three-prong receptacle. Do not cut or remove the grounding prong from this plug.
This heater does not require a 120V A.C. supply
for operation. In case of a power failure, the
burner switch and the optional remote control/
thermostat will continue to operate. However,
a 120V A.C. power supply is needed for the fan/
blower operation.
Caution: Ensure that the wires do
not touch any hot surfaces and are
away from sharp edges.
INSTALLATION

14 Regency U41-3 ULTIMATE Gas Fireplace Insert
OPERATING INSTRUCTIONS
OPERATING
INSTRUCTIONS
Before operating this appliance, proceed
through the following check list.
1) Read and understand these Instructions
before operating this appliance.
2) Check to see that all wiring is correct and
enclosed to prevent possible shock.
3) Check to ensure there are no gas leaks.
4) Make sure the three door glass pieces are
in place. Never operate the appliance with
any of the door glass removed or with the
door open. Do not strike the glass or slam
the door shut.
Warning: Do not operate appliance
with glass front removed, cracked
or broken. Replacement of the glass
should be done by a licensed or
qualified service person.
5) Verify that all venting and the cap is unob-
structed.
6) Verify log placement. If the pilot cannot be
seen when lighting the unit - the logs or the
embers have been incorrectly positioned.
7) The unit should never to turned off and on
without a minimum of a 60 second wait.
8) When lighting the appliance, the inside of
the glass may fog up. This will burn off after
a few minutes of operation.
DO NOT BURN THE APPLIANCE WITH THE
DOOR OPEN.
LIGHTING
PROCEDURE
IMPORTANT: Gas cock knob cannot be
turned from "PILOT" to "OFF" unless it is
partially depressed.
1) Open the left side door when lighting the
pilot, but once the pilot is lit, DO NOT operate
the unit with the front glass door open.
2) Open the bottom louver assembly by turn-
ing the wing nut and swinging the louvers
out. (See page 8 for diagram.)
3) If the control knob is in the "OFF" position
proceed to Step 5.
4) Push in gas control knob slightly and turn
clockwise to "OFF".
5) Wait five minutes to allow gas, that may
have accumulated in the main burner com-
partment, to escape. If you do smell gas,
follow the instructions on the front of this
manual. If you don't smell gas continue on
to the next step.
6) Turn the gas control counterclockwise to
"PILOT".
7) Push in control knob all the way and hold
in. Immediately push black button on spark
igniter until pilot lights. Continue to hold the
control knob in for approximately one
minute, then release the gas control knob.
The pilot flame should continue to burn. If
the pilot does not remain lit, repeat opera-
tion allowing a longer period before re-
leasing gas control knob.
8) Turn gas control knob counterclockwise
to "ON".
9) Use rocker switch to operate main burner.
10)Rotate the variable flame control to adjust
the flame height higher or lower.
11)Close the bottom louver assembly and
tighten the wingnut.
12)The door must be closed when operating
the unit.
Knob cannot be turned from "PILOT" to
"OFF" unless knob is pushed in slightly.
Do not force.
FIRST FIRE
The first fire in your stove is part of the paint
curing process. To ensure that the paint is
properly cured, it is recommended that you
burn your fireplace for at least four (4) hours
the first time you use it with the fan on. When
first operated, the unit will release an odour
caused by the curing of the paint, the burning
off of any oils remaining from manufacturing.
Smoke detectors in the house may go off at this
time. Open a few windows to ventilate the
room for a couple of hours.
The glass panel may require cleaning
after the unit has cooled down. DO
NOT ATTEMPT TO CLEAN THE
GLASS WHILE IT IS HOT.
Note: When the glass is cold and the
appliance is lit, it may cause con-
densation and fog the glass. This
condensation is normal and will
disappear in a few minutes as the
glass heats up.
DO NOT BURN THE APPLIANCE
WITHOUT THE GLASS FRONT IN
PLACE.
AUTOMATIC
CONVECTION FAN
OPERATION
The fan operates automatically, turn the knob
on the side of the faceplate to adjust to the
desired speed. The fan will turn on as the stove
comes up to operating temperature. After the
unit has been turned off and the unit cooled to
below a useful heat output range the fan will
shut off automatically.
SHUTDOWN
PROCEDURE
1) Use the rocker switch to turn off the main
burner.
2) Open the bottom louver assembly by turn-
ing the wing nut and swinging the louvers
out.
3) Push in the gas control knob slightly and
turn clockwise to "OFF". Do not force.
4) Disconnect all electric power to the appli-
ance if service is to be performed.

15
Regency U41-3 ULTIMATE Gas Fireplace Insert
COPY OF THE LIGHTING PLATE INSTRUCTIONS
LIGHTING INSTRUCTIONS
2) Wait five (5) minutes to clear out any gas. If you
then smell gas STOP! follow “B” in the safety
information above on this label. If you don’t
smell gas, go to the next step.
3) Turn knob on gas control counterclockwise
to “PILOT”.
4) Push in control knob all the way and hold in.
Immediately push black button on spark igniter
until pilot lights. Continue to hold the control
knob in for about 1/2 minute after the pilot is lit.
Release knob and it will pop back up. Pilot should
remain lit. If it goes out, repeat steps 3) and 4).
If knob does not pop up when released, stop and
immediately call your service technician or gas
supplier.
If the pilot will not stay lit after several tries, turn
the gas control knob to “OFF” and call your
service technician or gas supplier.
5) Turn gas control knob counterclockwise to
“ON”.
6) Use rocker switch to operate main burner.
STOP! Read the safety information above on this
label.
1) Push in gas control knob slightly and turn clock-
wise to “OFF”. Knob cannot be turned from
“PILOT” to “OFF” unless knob is pushed in
slightly. Do not force.
TO TURN OFF GAS APPLIANCE
1) Push in the gas control knob slightly and turn
clockwise to “OFF”. Do not force.
2) Turn off all electric power to the appliance if
service is to be performed.
DO NOT REMOVE THIS
INSTRUCTION PLATE
Made in Canada 908-432
A)This appliance has a pilot which must be lighted
by hand, following the instructions below
exactly.
B)BEFORE LIGHTING smell all around the appli-
ance area for gas. Be sure to smell next to the floor
because some gas is heavier than air and will
settle on the floor.
WHAT TO DO IF YOU SMELL GAS
- Do not try to light any appliance
- Do not touch any electric switch, do not use any
phone in your building
- Immediately call your gas supplier from a neigh-
bours phone. Follow the gas supplier’s instruc-
tions.
- If you cannot reach your gas supplier, call the
fire department.
C)Use only your hand to push in or turn the gas
control knob. Never use tools. If the knob will not
push in or turn by hand, don’t try to repair it, call
a qualified service technician. Force or attempted
repair may result in a fire or explosion.
D)Do not use this appliance if any part has been
under water. Immediately call a qualified service
technician to inspect the appliance and to replace
any part of the control system and any gas control
which has been under water.
CAUTION: Hot while in operation. Do
not touch. Due to high surface
temperatures keep children, clothing
and furniture, away. Keep burner and
control compartment clean.
See installation and operating
instructions accompanying appliance.
WARNING: If you do not follow these
instructions exactly, a fire or explosion
may result causing property damage,
personal injury or loss of life. Improper
installation, adjustment, alteration,
service or maintenance can cause injury
or property damage. Refer to the owner’s
information manual provided with this
appliance. For assistance or additional
information consult a qualified installer,
service agency or gas supplier.
FOR YOUR SAFETY
READ BEFORE LIGHTING
This appliance must be installed in accordance
with local codes, if any; if not, follow the current
CAN1-B149/ANSI Z 223.1 (Australia: AG601 /
New Zealand: NZS 5261)
This appliance needs fresh air for safe operation and
must be installed so there are provisions for adequate
combustion and ventilation air.
OPERATING INSTRUCTIONS

16 Regency U41-3 ULTIMATE Gas Fireplace Insert
MAINTENANCE
NORMAL OPERATING
SOUNDS OF
GAS APPLIANCES
It is possible that you will hear some sounds
from your gas appliance. This is perfectly
normal due to the fact that there are various
gauges and types of steel used within your
appliance. Listed below are some examples.
All are normal operating sounds and should
not be considered as defects in your appliance.
Blower:
Regency gas appliances use high tech blow-
ers to push heated air farther into the room. It
is not unusual for the fan to make a "whirring"
sound when ON. This sound will increase or
decrease in volume depending on the speed
setting of your fan speed control.
Burner Tray:
The burner tray is positioned directly under the
burner tube(s) and logs and is made of a
different gauge material from the rest of the
firebox and body. Therefore, the varying thick-
nesses of steel will expand and contract at
slightly different rates which can cause "tick-
ing" and "cracking" sounds. You should also be
aware that as there are temperature changes
within the unit these sounds will likely re-occur.
Again, this is normal for steel fireboxes.
Blower Thermodisc:
When this thermally activated switch turns ON
it will create a small "clicking" sound. This is the
switch contacts closing and is normal.
Pilot Flame:
While the pilot flame is on it can make a very
slight "whisper" sound.
Gas Control Valve:
As the gas control valve turns ON and OFF, a
dull clicking sound may be audible, this is normal
operation of a gas regulator or valve.
Unit Body/Firebox:
Different types and thicknesses of steel will
expand and contract at different rates resulting
in some "cracking" and "ticking" sounds will be
heard throughout the cycling process.
MAINTENANCE
INSTRUCTIONS
1) Always turn off the gas valve before
cleaning. For re-lighting, refer to lighting
instructions. Keep the burner and control
compartment clean by brushing and vacu-
uming at least once a year.
When cleaning the logs, use a clean soft
paint brush as the logs are fragile and
easily damaged.
2) Clean glass (never when unit is hot), appli-
ance, door and louvers with a damp cloth.
Never use an abrasive cleaner. The gold
louvers (and optional gold door) may be
scratched if abrasives are used to clean
them.
The heater is finished in a heat resistant
paint and should only be refinished with
heat resistant paint (not with wall paint).
Regency uses Stove Brite Paint - Metallic
Black #6309.
3) Make a periodic check of burner for proper
position and condition. Visually check the
flame of the burner periodically, making
sure the flames are steady; not lifting or
floating. If there is a problem, call a qualified
service person.
4) The appliance and venting system must be
inspected before use, and at least annual-
ly, by a qualified field service person, to
ensure that the flow of combustion and
ventilation air is not obstructed.
During the annual service call, the burners
should be removed from the burner tray
and cleaned. Replace the embers but do
not block the pilot.
5) Verify proper operation after servicing.
6) Keep the area near the appliance clear and
free from combustible materials, gasoline
and other flammable vapours and liquids.
WARNING: CHILDREN AND
ADULTS SHOULD BE ALERTED TO
THE HAZARDS OF HIGH SURFACE
TEMPERATURE AND SHOULD
STAY AWAY TO AVOID BURNS OR
CLOTHING IGNITION. YOUNG
CHILDREN SHOULD BE CARE-
FULLY SUPERVISED WHEN THEY
ARE IN THE SAME ROOM AS THE
APPLIANCE.
CAUTION: ANY SAFETY SCREEN
OR GUARD REMOVED FOR SERV-
ICING AN APPLIANCE MUST BE
REPLACED PRIOR TO OPERAT-
ING THE APPLIANCE.
CLOTHING OR OTHER FLAMMA-
BLE MATERIAL SHOULD NOT BE
PLACED ON OR NEAR THE AP-
PLIANCE.
7) Each time the appliance is lit, it may cause
condensation and fog the glass. This con-
densation and fog is normal and will disap-
pear in a few minutes as the glass heats up.
Never operate the appliance without
the glass properly secured in place or
with the door open.
8) Periodically check the pilot flames. Correct
flame pattern has three strong blue flames:
1 flowing around the thermopile, 1 flowing
across the rear of the burner and 1 reaching
towards the right (it does not have to be
touching the burner ports.
Note: If you have an incorrect flame pat-
tern, contact your Regency dealer
for further instructions.
Top View of pilot flame.
Incorrect flame pattern will have small, probably
yellow flames, not coming into proper contact
with the rear of the burner or thermopile.
Top View of pilot flame

17
Regency U41-3 ULTIMATE Gas Fireplace Insert
Installing Glass
1) Install both center and side glass onto
extrusions as per diagram.
2) Place glass assembly into door frame.
3) Install retainers by placing 1 drop of glue
where previously glued and put in place.
4) Install side retainers.
5) Install door catch plate.
6) Install the 24 nuts loosely, do not tighten yet.
7) Tighten side panels nuts using the following
procedure:
a. tighten top &
bottom outside
corner nuts (2)
b. tighten inside
nuts (3)
c. tighten top &
bottom inside
corners (2)
GLASS
REPLACEMENT
Your Regency stove is supplied with high
temperature, 5 mm Neoceram ceramic glass
that will withstand the highest heat that your
unit will produce. In the event that you break
your glass by impact, purchase your replace-
ment from an authorized Regency dealer only,
and follow our step-by-step instructions for
replacement.
LOG REPLACEMENT
The unit should never be used with broken logs.
Turn off the gas valve and allow the unit to cool
before opening door to carefully remove the
logs. The pilot light generates enough heat to
burn someone. If for any reason a log should
need replacement, you must use the proper
replacement log. The position of these logs
must be as shown in the diagram under Log
Installation.
NOTE: Improper positioning of logs may
create carbon build-up and will
alter the unit’s performance which
is not covered under warranty.
GOLD-PLATED DOORS
The 24 carat gold plated finish on the door
requires little maintenance, and need only be
cleaned with a damp cloth. DO NOT use
abrasive materials or chemical cleaners, as
they may harm the finish and void the warranty.
Clean any fingerprints off before turning the
unit on. If gasket seal is not tight - door
may discolour.
DOOR GASKET AND
GLASS GASKET
If the door gasket requires replacement use 7/
8" diameter oval door gasket (Part # 650-920).
The glass requires 5/8" flat glass gasket (Part
# 936-243). See your Regency Dealer.
LATCH ADJUSTMENT
The door latch may require adjustment as the
door gasket material compresses after a few
fires and after glass
replacement. Turn the
adjustable latch to tight-
en or loosen the latch.
8) Tighten the 10 nuts on center glass retain-
er.
9) Repeat step 7 for other side panel.
10)Replace new gasket by gluing it in place.
11)Install door onto stove and check the seal.
PANEL DOOR
1) Remove the door from the unit and place on
a soft surface to prevent scratching.
2) Pull out the door gasket.
3) Remove the nuts holding the glass retain-
ers in place.
4) Remove the glass retainers (sides, top and
bottom) and the door catch plate.
5) Replace the glass. The glass must have
gasketing around it.
6) Reverse the previous steps, replace the
retainers and fasten with the nuts but do
not overtighten, as this can break the glass.
Note: the door catch plate fits on top of the
left side retainer.
7) Put gasket glue on the retainers, but do not
put glue on the screws. Replace the door
gasket, the two ends butt tight together on
the bottom edge of the door.
8) Replace door on the stove and check the
seal.
MITRED DOOR
Removing Glass
Note: Wearing gloves will protect your
hands while handling glass.
1) Remove the door from the unit and place on
a soft surface to prevent scratching.
2) Pull out the door gasket.
3) Remove the 24 nuts holding the glass retain-
ers in place. Do not remove the nuts under-
neath the retainers.
4) Remove the door catch plate.
5) Remove glass retainers on sides first (3
each side) then remove two center retain-
ers.
Note: Center glass retainers are glued to
center glass.
6) Remove glass from extrusions. When re-
moving center glass, leave white insulation
in place.
MAINTENANCE

18 Regency U41-3 ULTIMATE Gas Fireplace Insert
MAINTENANCE
CAUTION:
Label all wires prior to disconnection when servicing controls.
Wiring errors can cause improper and dangerous operation.
IMPORTANT
Disconnect power supply
before servicing
WARNING: Electrical Grounding
Instructions
This appliance is equipped with a
three pronged (grounding) plug
for your protection against shock
hazard and should be plugged
directly into a properly grounded
three-prong receptacle. Do not
cut or remove the grounding
prong from this plug.
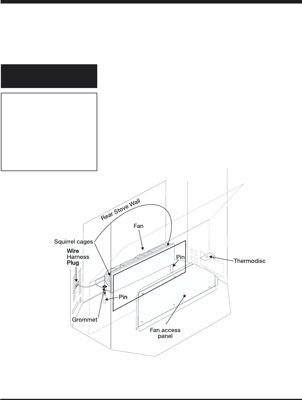
FAN MAINTENANCE
To remove fan:
1) Unplug or disconnect power source to
stove.
2) Remove all logs and the rear log support,
then remove the 6 screws holding the
access panel in place.
3) Disconnect white wire from fan to power
cord.
4) Disconnect black wire from molex plug to
thermodisc.
5) Unplug wire harness on left rear side panel
(from inside the stove).
6) Disconnect green ground wire from fan
body.
7) Lift fan off of the 2 pins, tip forward and pull
through firebox opening.
If your fan requires maintenance or replace-
ment, access to the fan is through the access
panel on the rear wall of the firebox. NOTE: the
unit MUST NOT be operated without the
fan access panel securely in place and
correctly sealed.
IMPORTANT: These fans do collect a
lot of dust from within your home.
Ensure you maintain these fan mo-
tors on a regular basis by vacuuming
out the fan squirrel cages.
Replacing fan:
Reverse above steps. Hint for pushing fan down
onto pins - rub a bit of dish soap on the grommet
so it will slide more easily onto the pin. Check to
make sure the fan is seated properly on the pins
- try to move the fan back and forth, there should
be no noise, if there is check that the grommets
haven't come loose.
Caution: Ensure that the wires do not
touch a hot surface.

19
Regency U41-3 ULTIMATE Gas Fireplace Insert
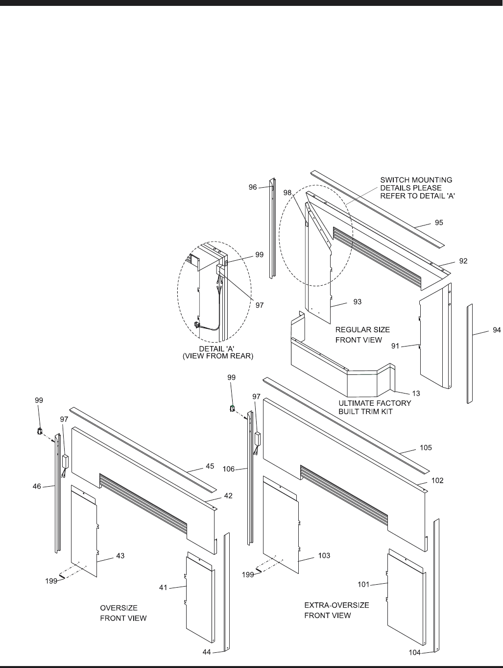
PARTS LIST
MAIN ASSEMBLY
Part # Description Part # Description
27) 910-142 Thermodisc - Fan Auto/On/Off
28) * Thermodisc Bracket
30) 610-175 Rear Panel
31) 591-187 Firebox Baffle Plate
908-727 Manual
*Not available as a replacement part.
1) 611-525 Bottom Louver Assy
2) 653-535/02 Top Louver Assy
9) 590-105 Fan Cover
10) 936-196 Fan Cover Gasket
610-517/P Fan Assembly (120 V)
11) 910-157/P Fan Motor
12) 910-794 Power Cord (120 V)
910-770 Wire Harness (stove connection end)
19) 613-520 Side Panel Assy - Left
20) 650-527 Side Panel Hinge Bracket - Left
21) 613-522 Side Panel Assy - Right
22) 650-528 Side Panel Hinge Bracket - Right
23) 710-028 Faceplate Mounting Bracket
24) 948-241 Door Latch
25) 910-325 Spill Switch
26) 610-576 False Top Assembly
836-220 False Top Insulation

20 Regency U41-3 ULTIMATE Gas Fireplace Insert
PARTS LIST
BURNER & LOGS
Part # Description
52) 910-190 Piezo Ignitor and nut
56) 910-426 Knob - Flame Hi/Low Extension
613-524/P Valve Assembly -NG
613-526/P Valve Assembly - LP
60) 910-028 Valve - RS - NG
910-029 Valve - RS - LP
904-688 Orifice - #32 NG
904-641 Orifice - #50 LP
71) * Log Stand
72) 910-034 Pilot Hood Assy- 3 Flame NG
910-035 Pilot Hood Assy- 3 Flame LP
75) 653-930 Log Set
78) 653-531 Burner Assy
80) 260-565 Air Shutter Gear Assembly (Female)
81) 904-565 Hex Key 3/16" A/F
*Not available as a replacement part.

21
Regency U41-3 ULTIMATE Gas Fireplace Insert
FACEPLATE & TRIM
Part # Description Part # Description
103) * Faceplate - Extra Oversize - Side Left Assy
613-538 Trim Pkg. - Extra Oversize -Black
104) * Trim - Extra Oversize - Right
105) * Trim - Extra Oversize - Top
106) * Trim - Extra Oversize - Left
663-911 Zero Clearance Faceplate
663-522 Trim Pkg. - Zero Clearance - Black
199) 948-216 Logo Plate
*Not available as a replacement part.
13) 611-930 Ultimate Factory Built Trim Kit
613-918 Faceplate & Trim - Complete - Oversize
41) * Faceplate - Oversize - Side Right
42) * Faceplate - Oversize - Top Assy
43) * Faceplate - Oversize - Side Left Assy
613-536 Trim Pkg. - Oversize - Black
44) * Trim - Oversize - Right
45) * Trim - Oversize - Top
46) * Trim - Oversize - Left
613-914 Faceplate & Trim - Complete - Regular
91) * Faceplate - Regular - Side Right
92) * Faceplate - Regular - Top Assy
93) * Faceplate - Regular - Side Left Assy
with Speed Control
613-534 Trim Pkg. - Regular - Black
613-950 Trim Pkg. - Regular - Brass
94) * Trim - Regular - Right
95) * Trim - Regular - Top
96) * Trim - Regular - Left Assy with
Burner Switch
97) 910-330 Fan Speed Controller
98) 904-569 Knob - Fan Speed Control
99) 910-246 Burner On/Off Switch
910-810 Wire Harness
(Faceplate end)
613-919 Faceplate & Trim - Complete
- Extra Oversize
101) * Faceplate - Extra Oversize
- Side Right
102) * Faceplate - Extra Oversize
- Top Assy
PARTS LIST

22 Regency U41-3 ULTIMATE Gas Fireplace Insert
NOTES
_____________________________________________________________________________________
____________________________________________________________
__________________________________________________________
____________________________________________________________
_______________________________________________________
_____________________________________________________
__________________________________________________________
_________________________________________________________
_________________________________________________________
______________________________________________________
______________________________________________________
_______________________________________________________________
___________________________________________________________
__________________________________________________________
____________________________________________________________
____________________________________________________________
____________________________________________________________
_____________________________________________________________
__________________________________________________________
__________________________________________________________
_____________________________________________________
________________________________________________________
_________________________________________________________
_________________________________________________________

23
Regency U41-3 ULTIMATE Gas Fireplace Insert
WARRANTY
Regency Fireplace Products, are designed with reliability and simplicity in mind. In addition, our internal Quality Assurance
Team carefully inspects each unit thoroughly before it leaves our door. Regency Industries Ltd. is pleased to extend this limited
lifetime warranty to the original purchaser of a Regency Product.
The Warranty: Lifetime
Covered under the agreement are the following components: Combustion chamber, heat exchanger, burner tubes, logs, embers,
glass (thermal breakage) and all gold plating (against defective manufacture).
The above will be covered for parts and labour for the first five years and parts only thereafter. Electrical components such as blowers,
fan motor, switches, wiring, thermodiscs, remote control, thermopiles, thermocouples, pilot assemblies, and gas valves are
covered for one year from the date of purchase.
Conditions:
All installations must be performed by a qualified gas fitter and installed according to all applicable local and national codes. Also,
all service work must be carried out by a qualified gas service person who is recommended by the selling dealer. It is the
responsibility of the installer to ensure that the appliance is firing as per rating plate. Any part or parts of this unit which in our
judgement show evidence of such defect will be repaired or replaced at Regency's option, through an accredited distributor or agent
provided that the defective part be returned to the distributor or agent Transportation Prepaid, if requested.
Exclusions:
This limited Lifetime Warranty does not extend to or include paint, door or glass gasketing or trim. It does not cover installation
and operational related problems such as over-firing, downdrafts or spillage caused by environmental conditions, nearby trees,
buildings, hilltops, mountains, inadequate venting or ventilation, excessive offsets, negative air pressures caused by insufficient
make up air, mechanical systems such as furnaces, fans, clothes dryers etc.
The warranty does not extend to any part or parts which show evidence of misuse or abuse, neglect, accident or lack of maintenance.
Products made by other manufacturers and used in conjunction with the operation of this appliance without authorization from
Regency, may nullify your warranty on this product.
Regency Industries Ltd., shall in no event be liable for any special, indirect consequential damages of any nature whatsoever which
are in excess of the original purchase price of the product. Any alteration to the unit which causes sooting or carboning that results
in damage to the exterior facia is not the responsibility of Regency Industries Ltd.
Note: Warranty is not transferable.
Vent Components:
The venting components are under warranty from Simpson Dura-Vent Inc.
General:
It is essential that all submitted claims provide all of the necessary information including purchase date, serial #, type of unit and
part or parts requested.

Installer: Please complete the following information
Dealer Name & Address:______________________________________________
__________________________________________________________________
Installer: ___________________________________________________________
Phone #: ___________________________________________________________
Date Installed: ______________________________________________________
Serial No.: _________________________________________________________
Printed in Canada
Regency fireplace products are designed
with reliability and simplicity in mind. In
addition, our internal Quality Assurance
Team carefully inspects each unit
thoroughly before it leaves our
door.
Fireplace Products International
Ltd. is pleased to extend this
Limited Lifetime Warranty to the
original purchaser of a Regency Prod-
uct.
See the inside back cover for details.
© FPI Fireplace Products International Ltd. 2003
Regency and energy are trademarks of FPI Fireplace Products International Ltd.
Register your Regency online at
http://www.regency-fire.com