Rheem Classic Plus Series Up To 95 Afue Ecm Motor Multi Position Specification Sheet
2015-04-02
: Rheem Rheem-Classic-Plus-Series-Up-To-95-Afue-Ecm-Motor-Multi-Position-Specification-Sheet-683782 rheem-classic-plus-series-up-to-95-afue-ecm-motor-multi-position-specification-sheet-683782 rheem pdf
Open the PDF directly: View PDF
.
Page Count: 12

Rheem Classic Plus®Series
Multi position Gas Furnaces
FORM NO. G11-538
R95T- Series
95% A.F.U.E.†
Input Rates from 40 to 115 kBTU
[11.72 to 33.71 kW]
•95% residential gas furnace CSA certified
•4 way multi-poise design
•PlusOne™Diagnostics 7-Segment LED all units
•PlusOne™Ignition System – DSI for reliability and longevity
•PlusOne™Water Management System with patented Blocked
Drain Sensor
•Heat exchanger is removable for improved serviceability.
Aluminized steel primary and stainless steel secondary con-
struction provide maximum corrosion resistance and thermal
fatigue reliability.
•Low profile “34 inch” cabinet ideal for space constrained
installations.
•Blower Shelf design – serviceable in all furnace orientations
•Pre marked hoses – insures proper system drainage
•Vent with 2" or 3" PVC
•Replaceable Collector box
•Hemmed edges on cabinet and doors
•Constant Torque electrically commutated motor
•Quarter turn fasteners for tool less access
•Integrated control boards feature dip switches for easy
system set up
•Self priming condensate trap
•Solid bottom included
Air Gas Furnaces
R95T Series
✝A.F.U.E. (Annual Fuel Utilization Efficiency) calculated in accordance with
Department of Energy test procedures.

Air Table of Contents
R95T Series
2
TABLE OF CONTENTS
Standard & Optional Equipment ......................................................................3
Physical Data & Specifications ........................................................................4
Model Number Identification ............................................................................5
Dimensional Data............................................................................................6
Blower Performance Data ................................................................................7
Accessories....................................................................................................8
Limited Warranty ............................................................................................9

Air Standard & Optional Equipment
R95T Series
3
PRIMARY AND SECONDARY
HEAT EXCHANGER
IN-SHOT BURNERS
PRESSURE SWITCHES
DRAFT
INDUCER
CONTROL
BOARD
GAS VALVE AND MANIFOLD
DIRECT SPARK IGNITION &
REMOTE SENSOR
STANDARD EQUIPMENT
Completely assembled and wired; blocked drain sensor, 7
segment LED and marked hoses; heat exchanger; primary:
aluminized steel, secondary: 29-4C stainless steel; solid bot-
tom; induced draft; pressure switches; redundant main gas
control; blower compartment door safety switch; solid state
time on/off blower control; limit controls; manual shut-off
valve; 100% safety lock out; cool fan off delay; field selectable
heat fan off delay; one hour automatic retry; power and self-
test diagnostics; flame sense current diagnostics; electronic
air cleaner connections; twinning (built-in) features; humidifier
connections; humidifier on/off delay; low speed continuous fan
option; single speed option for heating and cooling applica-
tions; transformer; direct drive, multi-speed Constant Torque
electrically commutated motor. (Please note: a thermostat is
not included as standard equipment.)
OPTIONAL EQUIPMENT
Side and bottom filter racks; return air cabinet for all sizes.
NOTE: Furnace is not listed for use with fuels other than natural
or L.P. (propane) gas.
All models can be converted by a qualified distributor or local
service dealer to use L.P. (propane) gas without changing burn-
ers. Factory approved kits must be used to convert from
natural to L.P. (propane) gas and may be ordered as optional
accessories from a parts distributor.
For L.P. (propane) operation, refer to Conversion Kit Index Form.
WARNING
THIS FURNACE IS NOT APPROVED
OR RECOMMENDED
FOR USE IN MOBILE HOMES
REMOTE
SENSOR
BLOCKED DRAIN
SENSOR
CONSTANT TORQUE
ELECTRICALLY
COMMUTATED MOTOR

Air Physical Data & Specifications
R95T Series
4
Physical Data and Specifications—Upflow Models
U.S. and Canadian Models
MODEL NUMBERS R95TA0401317MSA R95TA0601317MSA R95TA0701317MSA R95TA085121MSA R95TA1001521MSA R95TA1151524MSA
HIGH FIRE INPUT BTU/HR [kW] ➀42,000 [12.31] 56,000 [16.41] 70,000 [20.50] 84,000 [24.61] 98,000 [38.71] 112,000 [32.82]
HEATING CAPACITY BTU/HR [kW] 40,320 [11.82] 53,760 [15.75] 67,200 [19.68] 80,640 [23.63] 94,080 [37.16] 107,520 [31.51]
HIGH ALTITUDE OUTPUT
10% DERATE [kW] ➁36,288 [10.64] 48,384 [14.18] 60,480 [17.72] 72,576 [21.28] 84,672 [24.81] 96,768 [28.36]
BLOWER (D x W)
[mm]
11 x 7
[279 x 178]
11 x 8
[279 x 203]
11 x 8
[279 x 203]
11 x 10
[279 x 254]
11 x 10
[279 x 254]
11 x 11
[279 x 279]
MOTOR H.P. [W]–
TYPE
1/2 [373]-5-Contstant
Torque ECM
1/2 [373]-5-Contstant
Torque ECM
1/2 [373]-5-Contstant
Torque ECM
1 [746]-5-Contstant
Torque ECM
1 [746]-5-Contstant
Torque ECM
1 [746]-5-Contstant
Torque ECM
MOTOR FULL LOAD AMPS 4.0 6.8 6.8 8.3 8.3 8.3
HEATING SPEED MED-HIGH MED-HIGH MED-HIGH MED-HIGH MED-HIGH MED-HIGH
COOLING SPEED HIGH HIGH HIGH HIGH HIGH HIGH
MINIMUM EXT. STATIC
PRESSURE (IN. W.C.) [kPa] .18 [.045] .20 [.050] .23 [.057] .28 [.070] .28 [.070] .28 [.070]
MAXIMUM EXT. STATIC
PRESSURE (IN. W.C.) [kPa] .9 [0.224] .9 [0.224] .9 [0.224] .9 [0.224] .9 [0.224] .9 [0.224]
HEATING CFM @ .2" [.049 kPa]
W.C. E.S.P. [L/s] 982 [463] 913 [431] 1113 [525] 1574 [743] 1651 [779] 1524 [719]
COOLING CFM @ .5" [.124 kPa]
W.C. E.S.P. [L/s] 1239 [585] 1227 [579] 1198 [565] 1833 [865] 1975 [932] 1748 [825]
TEMPERATURE RISE-HIGH FIRE
RANGE IN DEGREES °F [°C]
25 - 55
[14 -31]
35 - 65
[19 - 36]
40 - 70
[22 - 39]
35 - 65
[19 - 36]
35 - 65
[19 - 36]
45 - 75
[25 - 42]
RETURN AIR CABINETS (OPT.)
RXGR-
FILTER SIZE
[mm]
C17B
(2) 12" x 16"
[305 x 406]
C17B
(2) 12" x 16"
[305 x 406]
C17B
(2) 12" x 16"
[305 x 406]
C21B
(2) 12" x 20"
[305 x 508]
C21B
(2) 12" x 20"
[305 x 508]
C24B
(2) 24" x 16"
[609 x 406]
APPROX. SHIPPING WEIGHT
(LBS.) [kg] 123.5 [56] 128 [58] 132 [60] 147.5 [67] 152 [69] 165 [75]
AFUE ➂95.00% 95.00% 95.00% 95.00% 95.00% 95.00%
NOTES: All models are 115V, 60HZ, 1 phase Gas connection size for all models is 1/2" [13 mm] N.P.T.
➀Installation instructions for high altitude derate.
➁ Canadian installations only.
➂In accordance with D.O.E. test procedures.
*S=Standard Models
NOTE: Standard model complies with California low nox requirements.
[ ] Designates Metric Conversions

Air Model Number Identification
R95T Series
5
Model Number Identification
R95 T A 040 1 3 17 M S A
Rheem Series
95%
Efficient
Motor -
Constant
Torque
Design Series
A = 1st Design
Input
BTU/HR
040 = 42,000 [12.31 kW]
060 = 56,000 [16.41 kW]
070 = 70,000 [20.51 kW]
085 = 84,000 [24.62 kW]
100 = 98,000 [28.72 kW]
115 = 112,000 [32.82 kW]
Stage - Single Airflow
3 - Up to 3 Tons
5 - Up to 5 Tons
Cabinet Width
17 = 17.5"
21 =21.0"
24 =24.5"
Configuration -
Multi-Position
S = Standard Revision -
Marketing
(A - First Time
Release)
—
[ ] Designates Metric Conversions

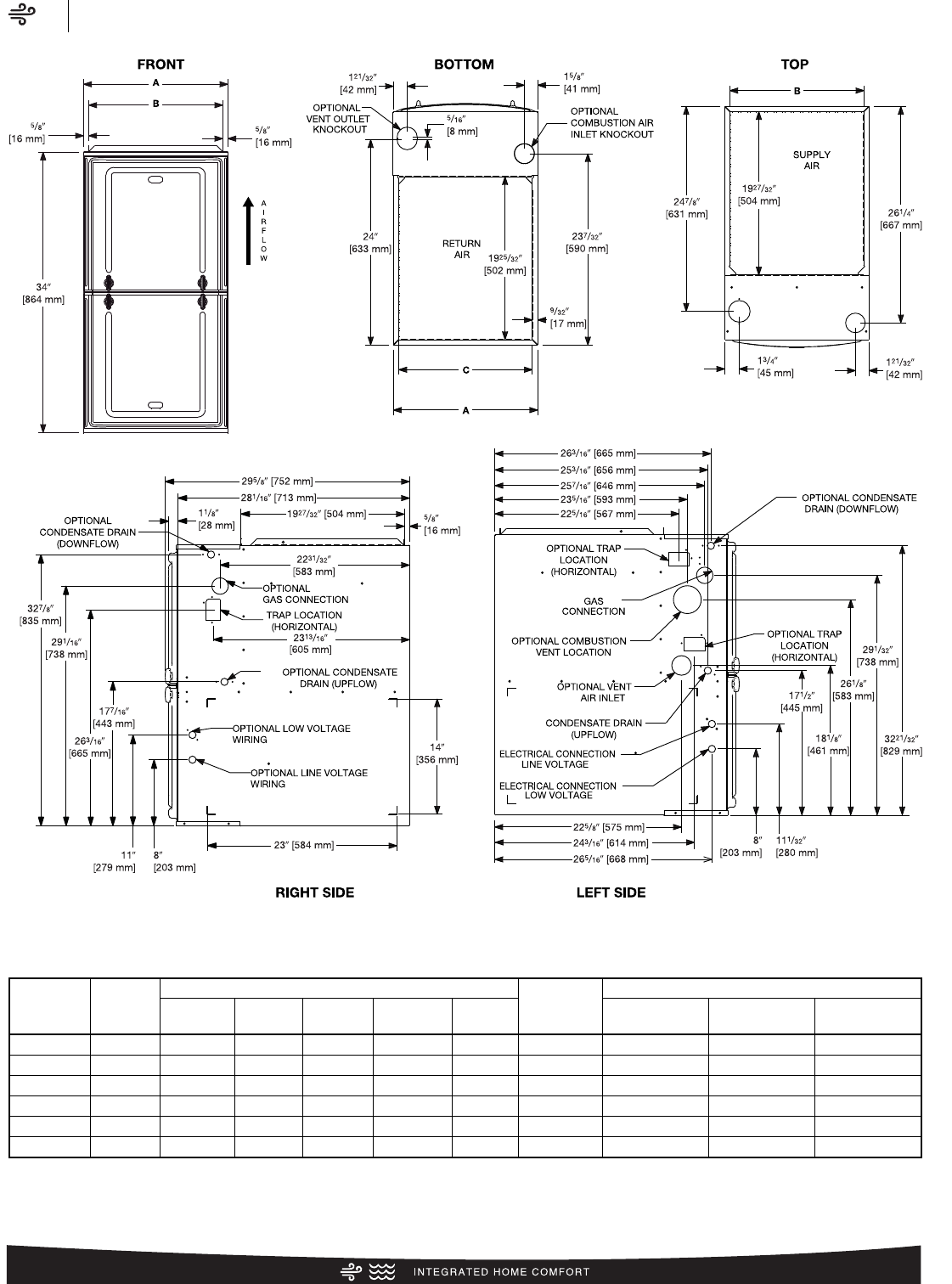
Air Dimensional Data
R95T Series
6
MODEL
R95T
LEFT
SIDE
MINIMUM CLEARANCE (IN.) [mm] SHIP
WGTS.
FLANGE DIMENSIONS
RIGHT
SIDE BACK TOP FRONT VENT A B C
040 0 0 0 1 [25] 2 [51] 0123.5 [56] 171/2[445] 1617/64 [413] 1613/64 [412]
060 0 0 0 1 [25] 2 [51] 0128 [58] 171/2[445] 1617/64 [413] 1613/64 [412]
070 0 0 0 1 [25] 2 [51] 0132 [60] 171/2[445] 1617/64 [413] 1613/64 [412]
085 0 0 0 1 [25] 2 [51] 0147.5 [67] 21 [533] 1949/64 [502] 1945/64 [500]
100 0 0 0 1 [25] 2 [51] 0152 [69] 21 [533] 1949/64 [502] 1945/64 [500]
115 0 0 0 1 [25] 2 [51] 0165 [75] 241/2[662] 2317/64 [591] 2313/64 [589]
UNIT DIMENSIONS
(CLEARANCE TO COMBUSTIBLES)
UNIT DIMENSIONS
(CLEARANCE TO COMBUSTIBLES)
*A service clearance of at least 24" is recommended in front of all furnaces [ ] Designates Metric Conversions
Supply and return depicted as upflow configuration.
Flange configuration will vary depending on installation orientation.

Air Blower Performance Data
R95T Series
7
FURNACE
MODEL
BLOWER
SIZE
[mm]
MOTOR
H.P.
[W]
MOTOR
TAP
MOTOR
LEAD WIRE
COLOR
SPEED
CFM [L/s] AIR DELIVERY
EXTERNAL STATIC PRESSURE INCHES WATER COLUMN [kPa]
0.1 [.02] 0.2 [.05] 0.3 [.07] 0.4 [.10] 0.5 [.12] 0.6 [.15] 0.7 [.17] 0.8 [.19] 0.9 [.22]
(-)95TA
0401317MSA
11 x 7
[279 x 178]
1/2
[373]
1Red Low 874 [413] 820 [387] 765 [361] 710 [335] 658 [311] 575 [271] 523 [247] 482 [228] 448 [211]
2Yellow Medium Low* 1029 [486] 982 [463] 930 [439] 881 [416] 833 [393] 780 [368] 716 [338] 665 [314] 621 [293]
3Purple Medium 1098 [518] 1055 [498] 1008 [476] 962 [454] 920 [434] 870 [411] 822 [388] 755 [356] 705 [332]
4Blue Medium High** 1253.6 [592] 1209.1 [571] 1164.4 [550] 1128.1 [532] 1082.2 [511] 1043.7 [493] 1000 [472] 960 [453] 907.2 [428]
5Black High 1380.6 [652] 1345.5 [635] 1313.1 [620] 1276 [602] 1239.2 [585] 1202.3 [567] 1166 [550] 1132.7 [535] 1098.9 [519]
(-)95TA
0601317MSA
11 x 8
[279 x 203]
1/2
[373]
1Red Low 818 [386] 766 [362] 720 [340] 668 [315] 594 [280] 548 [259] 494 [233] 444 [210] 416 [196]
2Yellow Medium Low* 968 [457] 913 [431] 885 [418] 841 [397] 796 [376] 739 [349] 685 [323] 641 [303] 596 [281]
3Purple Medium 1018 [480] 981 [463] 931 [439] 903 [426] 860 [406] 815 [385] 756 [357] 703 [332] 656 [310]
4Blue Medium High** 1173 [554] 1142 [539] 1108 [523] 1059 [500] 1025 [484] 989 [467] 951 [449] 912 [430] 855 [404]
5Black High 1338 [631] 1327 [626] 1288 [608] 1245 [588] 1227 [579] 1193 [563] 1165 [550] 1134 [535] 1099 [519]
(-)95TA
0701317MSA
11 x 8
[279 x 203]
1/2
[373]
1Red Low 947 [447] 908 [429] 871 [411] 834 [394] 796 [376] 755 [356] 716 [338] 681 [321] 656 [310]
2Yellow Medium Low 1044 [493] 997 [471] 968 [457] 934 [441] 902 [426] 862 [407] 828 [391] 795 [375] 765 [361]
3Purple Medium** 1148 [542] 1113 [525] 1092 [515] 1056 [498] 1029 [486] 995 [470] 962 [454] 928 [438] 895 [422]
4Blue Medium High** 1213 [572] 1180 [557] 1155 [545] 1126 [531] 1096 [517] 1062 [501] 1032 [487] 993 [469] 969 [457]
5Black High 1324 [625] 1283 [606] 1254 [592] 1221 [576] 1198 [565] 1169 [552] 1141 [538] 1107 [522] 1080 [510]
(-)95TA
0851521MSA
11 x 10
[279 x 254]
1
[746]
1Red Low 1573 [742] 1529 [722] 1462 [690] 1407 [664] 1349 [637] 1299 [613] 1242 [586] 1196 [564] 1150 [543]
2Yellow Medium Low* 1656 [782] 1621 [765] 1574 [743] 1533 [723] 1485 [701] 1434 [677] 1375 [649] 1328 [627] 1281 [605]
3Purple Medium 1692 [799] 1653 [780] 1606 [758] 1557 [735] 1508 [712] 1459 [689] 1409 [665] 1363 [643] 1312 [619]
4Blue Medium High** 1881 [888] 1831 [864] 1804 [851] 1757 [829] 1713 [808] 1668 [787] 1628 [768] 1568 [740] 1528 [721]
5Black High 1978 [934] 1942 [917] 1906 [900] 1862 [879] 1833 [865] 1793 [846] 1751 [826] 1702 [803] 1652 [780]
(-)95TA
1001521MSA
11 x 10
[279 x 254]
1
[746]
1Red Low 1637 [773] 1593 [752] 1545 [729] 1494 [705] 1441 [680] 1382 [652] 1329 [627] 1274 [601] 1236 [583]
2Yellow Medium Low* 1745 [824] 1697 [801] 1651 [779] 1600 [755] 1560 [736] 1500 [708] 1443 [681] 1394 [658] 1342 [633]
3Purple Medium 1766 [833] 1723 [813] 1686 [796] 1633 [771] 1585 [748] 1537 [725] 1482 [699] 1428 [674] 1380 [651]
4Blue Medium High** 1967 [928] 1929 [910] 1895 [894] 1852 [874] 1805 [852] 1754 [828] 1708 [806] 1668 [787] 1612 [761]
5Black High 2137 [1009] 2102 [992] 2062 [973] 2020 [953] 1975 [932] 1946 [918] 1908 [900] 1817 [858] 1685 [795]
(-)95TA
1151524MSA
11 x 11
[279 x 279]
1
[746]
1Red Low 1476 [697] 1432 [676] 1406 [664] 1332 [629] 1291 [609] 1247 [589] 1207 [570] 1163 [549] 1117 [527]
2Yellow Medium Low* 1615 [762] 1568 [740] 1524 [719] 1487 [702] 1452 [685] 1401 [661] 1356 [640] 1325 [625] 1278 [603]
3Purple Medium** 1709 [807] 1674 [790] 1633 [771] 1591 [751] 1551 [732] 1519 [717] 1477 [697] 1436 [678] 1397 [659]
4Blue Medium High 1772 [836] 1746 [824] 1706 [805] 1667 [787] 1627 [768] 1593 [752] 1553 [733] 1521 [718] 1482 [699]
5Black High 1887 [891] 1852 [874] 1828 [863] 1784 [842] 1748 [825] 1713 [808] 1678 [792] 1648 [778] 1619 [764]
*Low Static Heating Speed
**High Static Heating Speed
Shaded cells indicate static pressures at which that motor tap can be used for heating speed. Installer must verify static pressure. If static pressure is not within the limits noted here, the higher heating speed tap MUST
be used.
Do NOT use the speed taps and/or static pressures which do not fall into the shaded cells on this table.
This table is for reference. The technician/installer must verify furnace is operating within the published rise range before completing the installation.
[ ] Designates Metric Conversions.

Air Accessories
R95T Series
8
*Filter racks are shipped without filters.
Filters shipped with furnace may be used or a suitable 1" [25.4 mm] filter.
FILTER RACK FILTER SIZES* INCHES [mm]
MODEL
RXGF-CB
(UPFLOW/
HORIZONTAL)
RXGF-CD
(UPFLOW)
RXGF-CC
(DOWNFLOW)
R95TA040 153/4x 25
[400 x 635]
153/4x 25
[400 x 635]
12 x 20
[305 x 508]
R95TA060 153/4x 25
[400 x 635]
153/4x 25
[400 x 635]
12 x 20
[305 x 508]
R95TA070 153/4x 25
[400 x 635]
153/4x 25
[400 x 635]
12 x 20
[305 x 508]
R95TA085 191/4x 25
[489 x 635]
153/4x 25
[400 x 635]
12 x 20
[305 x 508]
R95TA100 191/4x 25
[489 x 635]
153/4x 25
[400 x 635]
12 x 20
[305 x 508]
R95TA115 223/4x 25
[578 x 635]
153/4x 25
[400 x 635]
14 x 20
[356 x 508]
FOR HIGH ALTITUDES:
NOTE: For Canadian installations only, an optional derate (manifold
gas pressure reduction) method may be used to adjust the
furnace for altitude. See Installation Instructions for more
information. This optional method may NOT be used for U.S.
installations. See installation instructions as appropriate orifice
change is required.
L.P. CONVERSION KIT: RXGJ-FP33
RETURN AIR PLENUM KIT: RXGR-C17B
RXGR-C21B
RXGR-C24B
CONDENSATE PUMP KIT: PROSTOCK & 1PCB151TUL
DOWNFLOW/HORIZONTAL CONVERSION KIT: RXGY-CK
DOWNFLOW/HORIZONTAL LEFT ZERO CLEARANCE
CONVERSION KIT: RXGY-ZK
COMBUSTIBLE FLOOR BASE: RXGC-B17
RXGC-B21
RXGC-B24
[ ] Designates Metric Conversions
INDOOR COIL CASINGS
MODEL
NUMBER
RXBC-D17A1
RXBC-D21A1
RXBC-D21B1
RXBC-D24A1
VENT TERMINATION KITS: =
RXGY-E02: Vertical/Horizontal Concentric Vent Termination Kit
2" Pipe (US Only)
RXGY-E02A: Vertical/Horizontal Concentric Vent Termination Kit
2" Pipe (US & Canadian)
RXGY-E03: Vertical/Horizontal Concentric Vent Termination Kit
3" Pipe (US Only)
RXGY-E03A: Vertical/Horizontal Concentric Vent Termination Kit
3" Pipe (US & Canadian)
RXGY-G02: Direct Vent Furnace Side Wall Vent 2" or 3" (US Only)
RXGY-D05: Combustion Air Drain Kit 2"
RXGY-D06: Combustion Air Drain Kit 3"
NEUTRALIZER KIT: RXGY-A01
(Replacement Cartridge 54-22120-01)
FOSSIL FUEL KIT: RXPF-F01, RXPF-F02 (TVA)
RETURN AIR PLENUM: RXGR-C17B
RXGR-C21B
RXGR-C24B
EXTERNAL BOTTOM FILTER (UPFLOW/HORIZONTAL) RACK:
RXGF-CB
EXTERNAL SIDE (UPFLOW) FILTER RACK: RXGF-CD
EXTERNAL (DOWNFLOW) FILTER RACK: RXGF-CC

Air Limited Warranty
R95T Series
9
GENERAL TERMS OF LIMITED WARRANTY*
Rheem will furnish a replacement for any part of this product
which fails in normal use and service within the applicable
period stated, in accordance with the terms of the limited
warranty.
*For complete details of the Limited and Conditional Warranties, including
applicable terms and conditions, contact your local contractor or the
Manufacturer for a copy of the product warranty certificate.
Conditional Parts
(Registration Required) ...............................Ten (10) Years
Heat Exchanger .........................................Limited Lifetime

Air Notes
R95T Series
10

Air Notes
R95T Series
11

The new degree of comfort.
™
Rheem Heating, Cooling & Water Heating • P.O. Box 17010
Fort Smith, Arkansas 72917 • www.rheem.com
In keeping with its policy of continuous progress and product improvement, Rheem reserves the right to make changes without notice.
PRINTED IN U.S.A 08/13 QG FORM NO. G11-538
Rheem Canada Ltd./Ltée • 125 Edgeware Road, Unit 1
Brampton, Ontario • L6Y 0P5