Rheem Classic Series Package Dual Fuel Specification Sheet
2015-04-02
: Rheem Rheem-Classic-Series-Package-Dual-Fuel-Specification-Sheet-684054 rheem-classic-series-package-dual-fuel-specification-sheet-684054 rheem pdf
Open the PDF directly: View PDF
.
Page Count: 40

FORM NO. D11-002 REV. 2
RQPW- 14-SEER Series
Nominal Sizes 2-4 Tons [7.0-14.0 kW]
Rheem Commercial Classic® Series
Package Dual Fuel Unit
Air Package Dual Fuel Unit
RQPW Series

Air Table of Contents
RQPW Series
2
TABLE OF CONTENTS
Unit Features & Benefits..................................................................................3-4
Model Number Identification ..............................................................................5
General Data
RQPW- Series ............................................................................................6-9
General Data Notes ..........................................................................................10
Gross Systems Performance Data
RQPW- Series ........................................................................................11-16
Airflow Performance
RQPW- Series ........................................................................................17-20
Electrical Data
RQPW- Series ..............................................................................................21
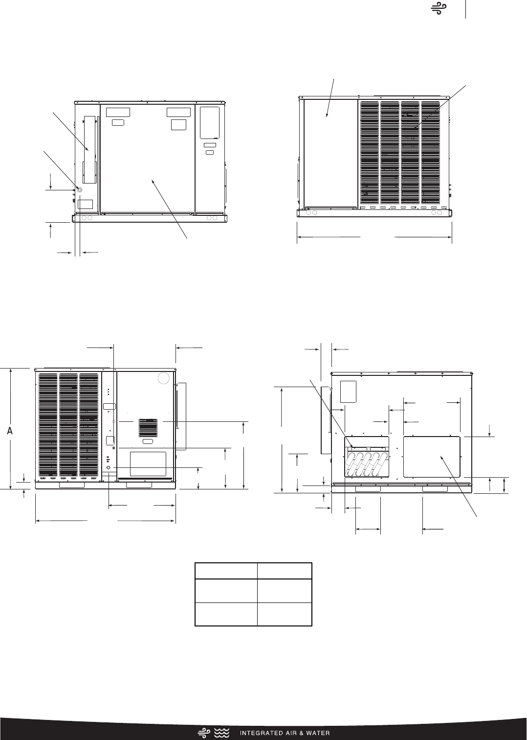
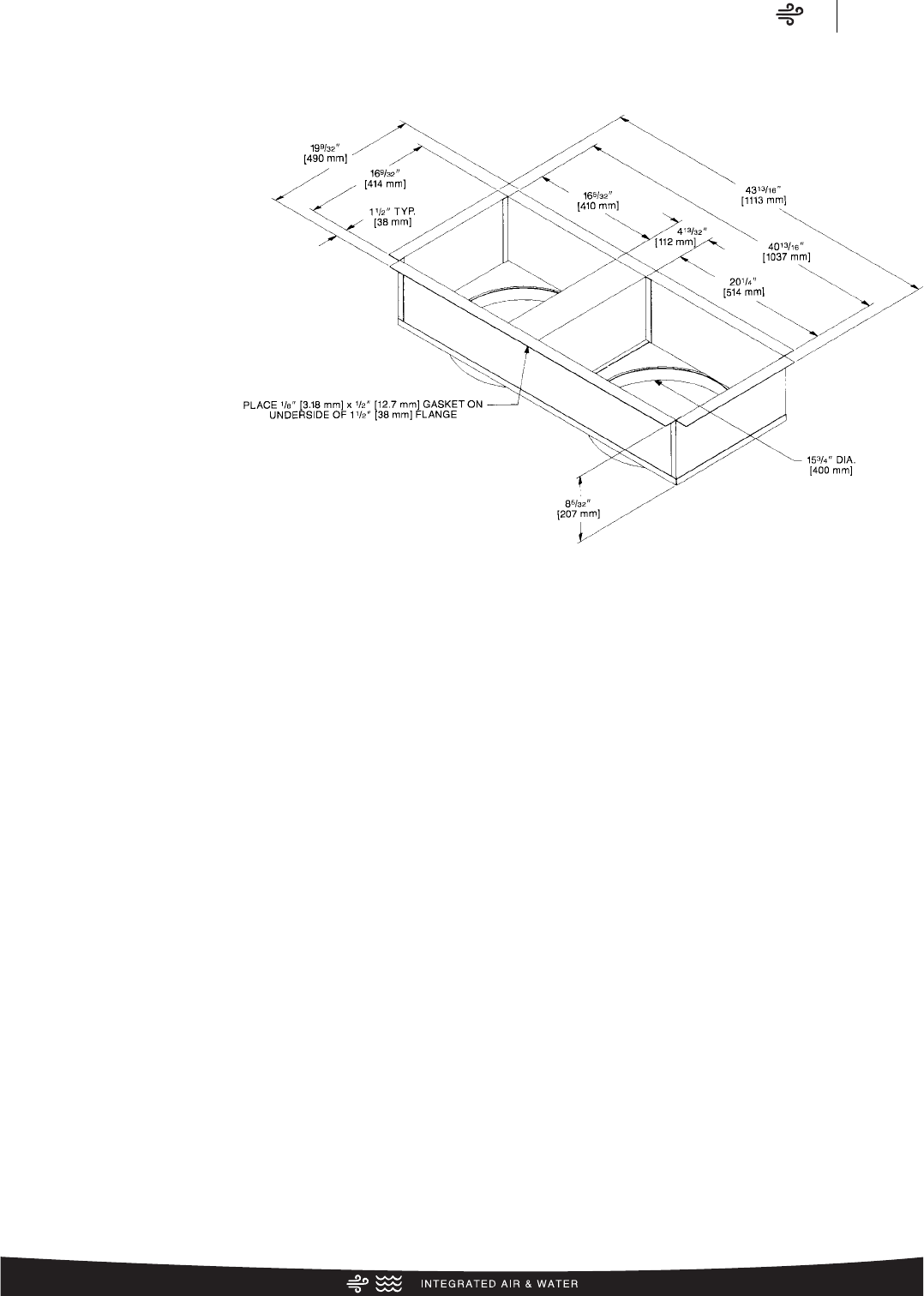
Dimensional Data ........................................................................................22-23
Typical Installations ..........................................................................................24
Accessories ................................................................................................25-34
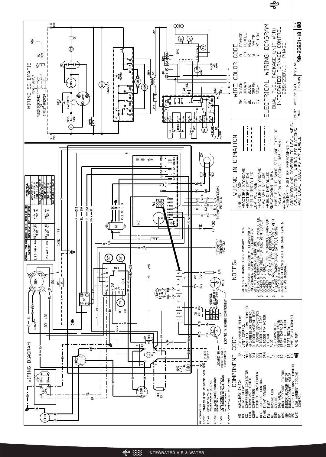
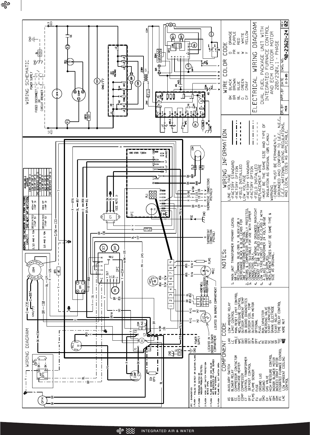
Wiring Diagrams..........................................................................................35-36
Limited Warranty..............................................................................................37

Air Unit Features & Benefits
RQPW Series
3
Package Dual Fuel Unit Feature:

Air Unit Features & Benefits
RQPW Series
4
1. A Package Dual Fuel Unit is a Package Heat Pump with a
gas furnace installed in the heat section instead of electric
heat that is in a standard Package Heat Pump. Generally,
heating is satisfied by operation of the Heat Pump above a
outdoor temperature balance point and below the outdoor
temperature balance point the gas furnace is utilized to
satisfy the heat requirement. This hybrid package system
allows for both comfort and energy savings. It is more cost
effective above the balance point to run electricity and the
heat pump provides adequate supply air temperature at
these outdoor temperatures to assure comfort. Below the
balance point it is more economical and provides better
comfort to utilize gas heat. All models feature Copeland®
Scroll®compressors for maximum efficiency and quiet
operation. This unit contains a special scroll compressor that
is designed specifically to operate with R-410A Refrigerants
and polyolester (POE) oils. The compressor is hermetically
sealed and incorporates internal high temperature motor
overload protection and durable insulation on the motor
windings. It is externally mounted on rubber grommets to
reduce vibration and noise.
2. Louvered condenser compartment for protecting the coil
against yard hazards and/or weather extremes.
3. One-piece top with a deep flange to help keep water out of
the unit.
4. Supply and return air openings feature a one-inch tall flange
to prevent water migration into the ductwork.
5. Access panels have “weep holes” and channels to further
help manage water run-off.
6. Side and down discharge options available on all models.
7. Easily accessible blower section complete with slide-out
blower. All units feature a system matched indoor coil with
low static pressure drop and excellent cooling capacities.
8. Refrigerant connections are conveniently located for easy
service diagnostics.
9. Condenser and evaporator coils feature enhanced fins for
better heat transfer and rifled copper tubing for greater
efficiency.
10. Inside the easily accessible furnace compartment is the draft
inducer motor. This motor is specially designed for quiet reli-
able operation. In addition to the draft inducer motor, the in-
shot gas burners and manifold efficiently regulate the flow of
gas for combustion. These new package dual fuel units also
feature direct-spark ignition and remote flame sensors for
added reliability and efficiency.
11. All units feature an internal trap on the condensate line elimi-
nating the need for installing an on-site external trap.
12. Easily accessible control box. Package dual-fuel utilizes
demand defrost control which monitors the outdoor ambient
temperature, outdoor coil temper ature, and compressor run-
time to determine when a defrost cycle is required.
13. Single point wiring makes installation even easier.
14. Our package dual fuel units feature a tubular stainless steel
heat exchanger design. Tubular heat exchangers are more
efficient and durable than older-style clamshell heat
exchangers and stainless steel is more corrosion resistant
than aluminized steel. The heat exchanger is backed by a
lifetime limited warranty.
15. Rugged Baserail for improved installation and handling.
16. Filter Drier Standard on all models.
17. Reversing valve directs flow of refrigerant and reverses the
refrigerant flow when heating is required.
18. The specially designed thermostat and outdoor ambient
sensor offered by Rheem optimizes the performance of the
package dual fuel unit. It is conveniently pre-programmed
for quick trouble-free installation. (Not included with the
unit) Model No. RHC-TST402DFMS.
Features Below Correspond to Photos on Page 3

Air Model Number Identification
RQPW Series
5
R Q P W — B 036 J K 08 E BVA
Factory Installed Options
(Side-flow, stainless-steel heat exchanger)
Ignition System
E = Electric
X = Electric Nox
Heating Capacity (MBH)
06 = 60,000 [17.6]
08 = 80,000 [23.4]
10 = 100,000 [29.3]
Drive Package
K = Direct Drive
Electrical Designation
J = 208-230V—1PH—60 Hz
Cooling Capacity (BTUH) [kW]
024 = 24,000 [7.03]
025 = 24,000 [7.03]
036 = 36,000 [10.55]
042 = 42,000 [12.31]
048 = 48,000 [14.07]
Future Technical Variations
Design Series
W = Dual Fuel
Efficiency Designation
P = 14 SEER
Product Classification
Q = Heat Pump Self Contained
Tradebrand
R = Rheem
[ ] Designates Metric Conversions

Air General Data
RQPW Series
6
NOMINAL SIZES 2-4 TONS [7.0-14.0 kW]
Model RQPW- Series B024JK06E B024JK06X B025JK06E B025JK06X
Cooling Performance1
Gross Cooling Capacity Btu [kW] 25,000 [7.32] 25,000 [7.32] 24,400 [7.15] 24,400 [7.15]
EER/SEER211.8/14 11.8/14 12/14 12/14
Nominal CFM/AHRI Rated CFM [L/s] 800/850 [378/401] 800/850 [378/401] 800/850 [378/401] 800/850 [378/401]
AHRI Net Cooling Capacity Btu [kW] 24,400 [7.15] 24,400 [7.15] 23,800 [6.97] 23,800 [6.97]
Net Sensible Capacity Btu [kW] 18,900 [5.54] 18,900 [5.54] 17,800 [5.22] 17,800 [5.22]
Net Latent Capacity Btu [kW] 5,500 [1.61] 5,500 [1.61] 6,000 [1.76] 6,000 [1.76]
Net System Power [kW] 2.06 2.06 1.98 1.98
Heating Performance (Heat Pumps)
High Temp. Btuh [kW] Rating 23,800 [6.97] 23,800 [6.97] 23,600 [6.91] 23,600 [6.91]
System Power KW / COP 1.99/3.5 1.99/3.5 1.87/3.7 1.87/3.7
Low Temp. Btuh [kW] Rating 13,800 [4.04] 13,800 [4.04] 12,900 [3.78] 12,900 [3.78]
System Power KW / COP 1.84/2.2 1.84/2.2 1.69/2.24 1.69/2.24
HSPF (BTU/Watts-hr) 8 8 8 8
Heating Performance (Gas)3
Heating Input Btu [kW] 60,000 [17.58] 60,000 [17.58] 60,000 [17.58] 60,000 [17.58]
Heating Output Btu [kW] 48,000 [14.06] 48,000 [14.06] 48,000 [14.06] 48,000 [14.06]
Temperature Rise Range ºF [ºC] 40-70 [22.2-38.9] 40-70 [22.2-38.9] 40-70 [22.2-38.9] 40-70 [22.2-38.9]
AFUE % 81 81 81 81
Steady State Efficiency (%) 82 82 82 82
No. Burners 3 3 3 3
No. Stages 1 1 1 1
Gas Connection Pipe Size in. [mm] 0.5 [12.7] 0.5 [12.7] 0.5 [12.7] 0.5 [12.7]
Compressor
No./Type 1/Scroll 1/Scroll 1/Scroll 1/Scroll
Outdoor Sound Rating (dB)476 76 76 76
Outdoor Coil—Fin Type Louvered Louvered Louvered Louvered
Tube Type Rifled Rifled Rifled Rifled
Tube Size in. [mm] OD 0.375 [9.5] 0.375 [9.5] 0.375 [9.5] 0.375 [9.5]
Face Area sq. ft. [sq. m] 14.51 [1.35] 14.51 [1.35] 14.51 [1.35] 14.51 [1.35]
Rows / FPI [FPcm] 1 / 22 [9] 1 / 22 [9] 1 / 22 [9] 1 / 22 [9]
Refrigerant Control TX Valves TX Valves TX Valves TX Valves
Indoor Coil—Fin Type Louvered Louvered Louvered Louvered
Tube Type Rifled Rifled Rifled Rifled
Tube Size in. [mm] 0.375 [9.5] 0.375 [9.5] 0.375 [9.5] 0.375 [9.5]
Face Area sq. ft. [sq. m] 5.54 [0.51] 5.54 [0.51] 5.54 [0.51] 5.54 [0.51]
Rows / FPI [FPcm] 2 / 15 [6] 2 / 15 [6] 2 / 15 [6] 2 / 15 [6]
Refrigerant Control TX Valves TX Valves TX Valves TX Valves
Drain Connection No./Size in. [mm] 1/1 [25.4] 1/1 [25.4] 1/1 [25.4] 1/1 [25.4]
Outdoor Fan—Type Propeller Propeller Propeller Propeller
No. Used/Diameter in. [mm] 1/22 [558.8] 1/22 [558.8] 1/22 [558.8] 1/22 [558.8]
Drive Type/No. Speeds Direct/1 Direct/1 Direct/1 Direct/1
CFM [L/s] 2700 [1274] 2700 [1274] 2700 [1274] 2700 [1274]
No. Motors/HP 1 at 1/3 HP 1 at 1/3 HP 1 at 1/3 HP 1 at 1/3 HP
Motor RPM 1075 1075 869 869
Indoor Fan—Type FC Centrifugal FC Centrifugal FC Centrifugal FC Centrifugal
No. Used/Diameter in. [mm] 1/9x7 [229x178] 1/9x7 [229x178] 1/9x7 [229x178] 1/9x7 [229x178]
Drive Type Direct Direct Direct Direct
No. Speeds Multiple Multiple Multiple Multiple
No. Motors 1 1 1 1
Motor HP 1/3 1/3 1/3 1/3
Motor RPM 1050 1050 869 869
Motor Frame Size 48 48 48 48
Filter—Type Field Supplied Field Supplied Field Supplied Field Supplied
Furnished No No No No
(NO.) Size Recommended in. [mm x mm x mm] (1)1x20x20 [25x508x508] (1)1x20x20 [25x508x508] (1)1x20x20 [25x508x508] (1)1x20x20 [25x508x508]
Refrigerant Charge Oz. [g] 97 [2750] 97 [2750] 97 [2750] 97 [2750]
Weights
Net Weight lbs. [kg] 440 [200] 440 [200] 445 [202] 440 [200]
Ship Weight lbs. [kg] 450 [204] 450 [204] 455 [206] 450 [204]
CONTINUED
See Page 10 for Notes. [ ] Designates Metric Conversions

Air General Data
RQPW Series
7
NOMINAL SIZES 2-4 TONS [7.0-14.0 kW]
Model RQPW- Series B030JK08E B030JK08X B036JK08E B036JK08X
Cooling Performance1
Gross Cooling Capacity Btu [kW] 29,800 [8.73] 29,800 [8.73] 36,800 [10.78] 36,800 [10.78]
EER/SEER212/14 12/14 11.3/14 11.3/14
Nominal CFM/AHRI Rated CFM [L/s] 1000/1050 [472/495] 1000/1050 [472/495] 1200/1250 [566/590] 1200/1250 [566/590]
AHRI Net Cooling Capacity Btu [kW] 29,200 [8.56] 29,200 [8.56] 36,000 [10.55] 36,000 [10.55]
Net Sensible Capacity Btu [kW] 23,000 [6.74] 23,000 [6.74] 27,000 [7.91] 27,000 [7.91]
Net Latent Capacity Btu [kW] 6,200 [1.82] 6,200 [1.82] 9,000 [2.64] 9,000 [2.64]
Net System Power [kW] 2.43 2.43 3 3
Heating Performance (Heat Pumps)
High Temp. Btuh [kW] Rating 27,800 [8.15] 27,800 [8.15] 33,200 [9.73] 33,200 [9.73]
System Power KW / COP 2.26/3.6 2.26/3.6 2.7/3.6 2.7/3.6
Low Temp. Btuh [kW] Rating 15,500 [4.54] 15,500 [4.54] 18,000 [5.27] 18,000 [5.27]
System Power KW / COP 2.06/2.2 2.06/2.2 2.4/2.2 2.4/2.2
HSPF (BTU/Watts-hr) 8 8 8 8
Heating Performance (Gas)3
Heating Input Btu [kW] 80,000 [23.44] 80,000 [23.44] 80,000 [23.44] 80,000 [23.44]
Heating Output Btu [kW] 65,000 [19.04] 65,000 [19.04] 65,000 [19.04] 65,000 [19.04]
Temperature Rise Range ºF [ºC] 35-65 [19.4-36.1] 35-65 [19.4-36.1] 35-65 [19.4-36.1] 35-65 [19.4-36.1]
AFUE % 81 81 81 81
Steady State Efficiency (%) 82 82 82 82
No. Burners 4 4 4 4
No. Stages 1 1 1 1
Gas Connection Pipe Size in. [mm] 0.5 [12.7] 0.5 [12.7] 0.5 [12.7] 0.5 [12.7]
Compressor
No./Type 1/Scroll 1/Scroll 1/Scroll 1/Scroll
Outdoor Sound Rating (dB)476 76 76 76
Outdoor Coil—Fin Type Louvered Louvered Louvered Louvered
Tube Type Rifled Rifled Rifled Rifled
Tube Size in. [mm] OD 0.375 [9.5] 0.375 [9.5] 0.375 [9.5] 0.375 [9.5]
Face Area sq. ft. [sq. m] 16.32 [1.52] 16.32 [1.52] 11.2 [1.04] 11.2 [1.04]
Rows / FPI [FPcm] 1 / 22 [9] 1 / 22 [9] 2 / 22 [9] 2 / 22 [9]
Refrigerant Control TX Valves TX Valves TX Valves TX Valves
Indoor Coil—Fin Type Louvered Louvered Louvered Louvered
Tube Type Rifled Rifled Rifled Rifled
Tube Size in. [mm] 0.375 [9.5] 0.375 [9.5] 0.375 [9.5] 0.375 [9.5]
Face Area sq. ft. [sq. m] 7.39 [0.69] 7.39 [0.69] 7.39 [0.69] 7.39 [0.69]
Rows / FPI [FPcm] 2 / 15 [6] 2 / 15 [6] 2 / 15 [6] 2 / 15 [6]
Refrigerant Control TX Valves TX Valves TX Valves TX Valves
Drain Connection No./Size in. [mm] 1/1 [25.4] 1/1 [25.4] 1/1 [25.4] 1/1 [25.4]
Outdoor Fan—Type Propeller Propeller Propeller Propeller
No. Used/Diameter in. [mm] 1/22 [558.8] 1/22 [558.8] 1/22 [558.8] 1/22 [558.8]
Drive Type/No. Speeds Direct/1 Direct/1 Direct/1 Direct/1
CFM [L/s] 2700 [1274] 2700 [1274] 2700 [1274] 2700 [1274]
No. Motors/HP 1 at 1/3 HP 1 at 1/3 HP 1 at 1/3 HP 1 at 1/3 HP
Motor RPM 1075 1075 1075 1075
Indoor Fan—Type FC Centrifugal FC Centrifugal FC Centrifugal FC Centrifugal
No. Used/Diameter in. [mm] 1/10x9 [254x229] 1/10x9 [254x229] 1/10x9 [254x229] 1/10x9 [254x229]
Drive Type Direct Direct Direct Direct
No. Speeds Multiple Multiple Multiple Multiple
No. Motors 1 1 1 1
Motor HP 1/2 1/2 1/2 1/2
Motor RPM 1050 1050 1050 1050
Motor Frame Size 48 48 48 48
Filter—Type Field Supplied Field Supplied Field Supplied Field Supplied
Furnished No No No No
(NO.) Size Recommended in. [mm x mm x mm] (1)1x24x24 [25x610x610] (1)1x24x24 [25x610x610] (1)1x24x24 [25x610x610] (1)1x24x24 [25x610x610]
Refrigerant Charge Oz. [g] 108 [3062] 108 [3062] 146 [4139] 146 [4139]
Weights
Net Weight lbs. [kg] 485 [220] 485 [220] 506 [230] 506 [230]
Ship Weight lbs. [kg] 496 [225] 496 [225] 517 [235] 517 [235]
CONTINUED
See Page 10 for Notes. [ ] Designates Metric Conversions

Air General Data
RQPW Series
8
NOMINAL SIZES 2-4 TONS [7.0-14.0 kW]
Model RQPW- Series B036JK10E B036JK10X B042JK10E B042JK10X
Cooling Performance1
Gross Cooling Capacity Btu [kW] 36,800 [10.78] 36,800 [10.78] 43,500 [12.75] 43,500 [12.75]
EER/SEER211.3/14 11.3/14 11.3/14 11.3/14
Nominal CFM/AHRI Rated CFM [L/s] 1200/1250 [566/590] 1200/1250 [566/590] 1400/1400 [661/661] 1400/1400 [661/661]
AHRI Net Cooling Capacity Btu [kW] 36,000 [10.55] 36,000 [10.55] 42,500 [12.45] 42,500 [12.45]
Net Sensible Capacity Btu [kW] 27,000 [7.91] 27,000 [7.91] 31,500 [9.23] 31,500 [9.23]
Net Latent Capacity Btu [kW] 9,000 [2.64] 9,000 [2.64] 11,000 [3.22] 11,000 [3.22]
Net System Power [kW] 3 3 3.76 3.76
Heating Performance (Heat Pumps)
High Temp. Btuh [kW] Rating 33,200 [9.73] 33,200 [9.73] 41,500 [12.16] 41,500 [12.16]
System Power KW / COP 2.7/3.6 2.7/3.6 3.58/3.4 3.58/3.4
Low Temp. Btuh [kW] Rating 18,000 [5.27] 18,000 [5.27] 24,200 [7.09] 24,200 [7.09]
System Power KW / COP 2.4/2.2 2.4/2.2 3.41/2.08 3.41/2.08
HSPF (BTU/Watts-hr) 8 8 8 8
Heating Performance (Gas)3
Heating Input Btu [kW] 100,000 [29.3] 100,000 [29.3] 100,000 [29.3] 100,000 [29.3]
Heating Output Btu [kW] 81,000 [23.73] 81,000 [23.73] 81,000 [23.73] 81,000 [23.73]
Temperature Rise Range ºF [ºC] 45-75 [25-41.7] 45-75 [25-41.7] 45-75 [25-41.7] 45-75 [25-41.7]
AFUE % 81 81 81 81
Steady State Efficiency (%) 82 82 82 82
No. Burners 5 5 5 5
No. Stages 1 1 1 1
Gas Connection Pipe Size in. [mm] 0.5 [12.7] 0.5 [12.7] 0.5 [12.7] 0.5 [12.7]
Compressor
No./Type 1/Scroll 1/Scroll 1/Scroll 1/Scroll
Outdoor Sound Rating (dB)476 76 76 76
Outdoor Coil—Fin Type Louvered Louvered Louvered Louvered
Tube Type Rifled Rifled Rifled Rifled
Tube Size in. [mm] OD 0.375 [9.5] 0.375 [9.5] 0.375 [9.5] 0.375 [9.5]
Face Area sq. ft. [sq. m] 11.2 [1.04] 11.2 [1.04] 16.32 [1.52] 16.32 [1.52]
Rows / FPI [FPcm] 2 / 22 [9] 2 / 22 [9] 2 / 22 [9] 2 / 22 [9]
Refrigerant Control TX Valves TX Valves TX Valves TX Valves
Indoor Coil—Fin Type Louvered Louvered Louvered Louvered
Tube Type Rifled Rifled Rifled Rifled
Tube Size in. [mm] 0.375 [9.5] 0.375 [9.5] 0.375 [9.5] 0.375 [9.5]
Face Area sq. ft. [sq. m] 7.39 [0.69] 7.39 [0.69] 7.39 [0.69] 7.39 [0.69]
Rows / FPI [FPcm] 2 / 15 [6] 2 / 15 [6] 2 / 15 [6] 2 / 15 [6]
Refrigerant Control TX Valves TX Valves TX Valves TX Valves
Drain Connection No./Size in. [mm] 1/1 [25.4] 1/1 [25.4] 1/1 [25.4] 1/1 [25.4]
Outdoor Fan—Type Propeller Propeller Propeller Propeller
No. Used/Diameter in. [mm] 1/22 [558.8] 1/22 [558.8] 1/22 [558.8] 1/22 [558.8]
Drive Type/No. Speeds Direct/1 Direct/1 Direct/1 Direct/1
CFM [L/s] 2700 [1274] 2700 [1274] 3300 [1557] 3300 [1557]
No. Motors/HP 1 at 1/3 HP 1 at 1/3 HP 1 at 1/3 HP 1 at 1/3 HP
Motor RPM 1075 1075 1075 1075
Indoor Fan—Type FC Centrifugal FC Centrifugal FC Centrifugal FC Centrifugal
No. Used/Diameter in. [mm] 1/10x9 [254x229] 1/10x9 [254x229] 1/10x9 [254x229] 1/10x9 [254x229]
Drive Type Direct Direct Direct Direct
No. Speeds Multiple Multiple Multiple Multiple
No. Motors 1 1 1 1
Motor HP 1/2 1/2 3/4 3/4
Motor RPM 1050 1050 1075 1075
Motor Frame Size 48 48 48 48
Filter—Type Field Supplied Field Supplied Field Supplied Field Supplied
Furnished No No No No
(NO.) Size Recommended in. [mm x mm x mm] (1)1x24x24 [25x610x610] (1)1x24x24 [25x610x610] (1)1x24x24 [25x610x610] (1)1x24x24 [25x610x610]
Refrigerant Charge Oz. [g] 146 [4139] 146 [4139] 176 [4990] 176 [4990]
Weights
Net Weight lbs. [kg] 511 [232] 511 [232] 572 [259] 572 [259]
Ship Weight lbs. [kg] 522 [237] 522 [237] 583 [264] 583 [264]
CONTINUED
See Page 10 for Notes. [ ] Designates Metric Conversions

Air General Data
RQPW Series
9
NOMINAL SIZES 2-4 TONS [7.0-14.0 kW]
Model RQPW- Series B048JK10E B048JK10X
Cooling Performance1
Gross Cooling Capacity Btu [kW] 49,000 [14.36] 49,000 [14.36]
EER/SEER211.5/14 11.5/14
Nominal CFM/AHRI Rated CFM [L/s] 1600/1600 [755/755] 1600/1600 [755/755]
AHRI Net Cooling Capacity Btu [kW] 47,500 [13.92] 47,500 [13.92]
Net Sensible Capacity Btu [kW] 36,000 [10.55] 36,000 [10.55]
Net Latent Capacity Btu [kW] 11,500 [3.37] 11,500 [3.37]
Net System Power [kW] 4.13 4.13
Heating Performance (Heat Pumps)
High Temp. Btuh [kW] Rating 46,000 [13.48] 46,000 [13.48]
System Power KW / COP 3.92/3.44 3.92/3.44
Low Temp. Btuh [kW] Rating 26,600 [7.79] 26,600 [7.79]
System Power KW / COP 3.54/2.2 3.54/2.2
HSPF (BTU/Watts-hr) 8 8
Heating Performance (Gas)3
Heating Input Btu [kW] 100,000 [29.3] 100,000 [29.3]
Heating Output Btu [kW] 81,000 [23.73] 81,000 [23.73]
Temperature Rise Range ºF [ºC] 45-75 [25-41.7] 45-75 [25-41.7]
AFUE % 81 81
Steady State Efficiency (%) 82 82
No. Burners 5 5
No. Stages 1 1
Gas Connection Pipe Size in. [mm] 0.5 [12.7] 0.5 [12.7]
Compressor
No./Type 1/Scroll 1/Scroll
Outdoor Sound Rating (dB)478 78
Outdoor Coil—Fin Type Louvered Louvered
Tube Type Rifled Rifled
Tube Size in. [mm] OD 0.375 [9.5] 0.375 [9.5]
Face Area sq. ft. [sq. m] 16.32 [1.52] 16.32 [1.52]
Rows / FPI [FPcm] 2 / 22 [9] 2 / 22 [9]
Refrigerant Control TX Valves TX Valves
Indoor Coil—Fin Type Louvered Louvered
Tube Type Rifled Rifled
Tube Size in. [mm] 0.375 [9.5] 0.375 [9.5]
Face Area sq. ft. [sq. m] 7.39 [0.69] 7.39 [0.69]
Rows / FPI [FPcm] 2 / 15 [6] 2 / 15 [6]
Refrigerant Control TX Valves TX Valves
Drain Connection No./Size in. [mm] 1/1 [25.4] 1/1 [25.4]
Outdoor Fan—Type Propeller Propeller
No. Used/Diameter in. [mm] 1/22 [558.8] 1/22 [558.8]
Drive Type/No. Speeds Direct/1 Direct/1
CFM [L/s] 3000 [1416] 3000 [1416]
No. Motors/HP 1 at 1/3 HP 1 at 1/3 HP
Motor RPM 1075 1075
Indoor Fan—Type FC Centrifugal FC Centrifugal
No. Used/Diameter in. [mm] 1/10x9 [254x229] 1/10x9 [254x229]
Drive Type Direct Direct
No. Speeds Multiple Multiple
No. Motors 1 1
Motor HP 3/4 3/4
Motor RPM 1075 1075
Motor Frame Size 48 48
Filter—Type Field Supplied Field Supplied
Furnished No No
(NO.) Size Recommended in. [mm x mm x mm] (1)1x24x24 [25x610x610] (1)1x24x24 [25x610x610]
Refrigerant Charge Oz. [g] 183 [5188] 183 [5188]
Weights
Net Weight lbs. [kg] 604 [274] 604 [274]
Ship Weight lbs. [kg] 615 [279] 615 [279]
See Page 10 for Notes. [ ] Designates Metric Conversions

Air General Data Notes
RQPW Series
10
NOTES:
1. Cooling Performance is rated at 95° F ambient, 80° F entering dry bulb, 67° F entering wet bulb. Gross capacity does
not include the effect of fan motor heat. AHRI capacity is net and includes the effect of fan motor heat. Units are
suitable for operation to ⫾20% of nominal cfm. Units are certified in accordance with the Unitary Air Conditioner
Equipment certification program, which is based on AHRI Standard 210/240 or 360.
2. EER and/or SEER are rated at AHRI conditions and in accordance with DOE test procedures.
3. Heating Performance is rated at 47° F ambient, 70° F entering dry bulb for High Temp rating and 17° F ambient, 70° F
entering dry bulb for Low Temp rating. Performance ratings do include the effect of fan motor heat. Heating
Performance limit settings and rating data were established and approved under laboratory test conditions using
American National Standard Institute standards. Ratings shown are for elevations up to 2000 feet. For elevations
above 2000 feet, ratings should be reduced at the rate of 4% for each 1000 feet above sea level.
4. Outdoor Sound Rating shown is tested in accordance with AHRI Standard 270.

Air Gross Systems Performance Data
RQPW Series
11
COOLING PERFORMANCE DATA—RQPW-024
ENTERING INDOOR AIR @ 80°F [26.7°C] dbE ➀
wbE 71°F [21.7°C] 67°F [19.4°C] 63°F [17.2°C]
CFM [L/s] 940 [444] 850 [401] 760 [359] 940 [444] 850 [401] 760 [359] 940 [444] 850 [401] 760 [359]
DR ➀.15 .13 .11 .15 .13 .11 .15 .13 .11
O
U
T
D
O
O
R
D
R
Y
B
U
L
B
T
E
M
P
E
R
A
T
U
R
E
°F
[°C]
75
[23.9]
Total BTUH [kW]
Sens BTUH [kW]
Power
29.9 [8.76]
19.2 [5.63]
1.5
29.4 [8.62]
18.4 [5.39]
1.5
28.8 [8.44]
17.5 [5.13]
1.5
28.6 [8.38]
22.0 [6.45]
1.5
28.0 [8.21]
21.0 [6.15]
1.5
27.5 [8.06]
20.1 [5.89]
1.5
27.6 [8.09]
23.3 [6.83]
1.5
27.1 [7.94]
22.3 [6.54]
1.5
26.6 [7.80]
21.2 [6.21]
1.5
80
[26.7]
Total BTUH [kW]
Sens BTUH [kW]
Power
29.7 [8.70]
19.0 [5.57]
1.6
29.1 [8.53]
18.1 [5.30]
1.6
28.6 [8.38]
17.3 [5.07]
1.6
28.3 [8.29]
21.8 [6.39]
1.6
27.8 [8.15]
20.8 [6.10]
1.6
27.3 [8.00]
19.9 [5.83]
1.6
27.3 [8.00]
23.1 [6.77]
1.6
26.8 [7.85]
22.1 [6.48]
1.6
26.4 [7.74]
21.0 [6.15]
1.6
85
[29.4]
Total BTUH [kW]
Sens BTUH [kW]
Power
29.0 [8.50]
18.6 [5.45]
1.7
28.5 [8.35]
17.8 [5.22]
1.7
27.9 [8.18]
16.9 [4.95]
1.7
27.6 [8.09]
21.4 [6.27]
1.7
27.2 [7.97]
20.5 [6.01]
1.7
26.7 [7.83]
19.5 [5.71]
1.7
26.7 [7.83]
22.7 [6.65]
1.7
26.2 [7.68]
21.7 [6.36]
1.7
25.7 [7.53]
20.7 [6.07]
1.7
90
[32.2]
Total BTUH [kW]
Sens BTUH [kW]
Power
28.0 [8.21]
18.1 [5.30]
1.8
27.5 [8.06]
17.3 [5.07]
1.8
27.0 [7.91]
16.5 [4.84]
1.8
26.6 [7.80]
20.9 [6.13]
1.8
26.2 [7.68]
20.0 [5.86]
1.8
25.7 [7.53]
19.1 [5.60]
1.8
25.6 [7.50]
22.2 [6.51]
1.8
25.2 [7.39]
21.2 [6.21]
1.8
24.7 [7.24]
20.2 [5.92]
1.8
95
[35]
Total BTUH [kW]
Sens BTUH [kW]
Power
26.7 [7.83]
17.5 [5.13]
1.9
26.3 [7.71]
16.7 [4.89]
1.9
25.8 [7.56]
16.0 [4.69]
1.9
25.4 [7.44]
20.4 [5.98]
1.9
24.9 [7.30]
19.4 [5.69]
1.9
24.5 [7.18]
18.5 [5.42]
1.9
24.4 [7.15]
21.6 [6.33]
1.9
24.0 [7.03]
20.7 [6.07]
1.9
23.5 [6.89]
19.7 [5.77]
1.9
100
[37.8]
Total BTUH [kW]
Sens BTUH [kW]
Power
25.4 [7.44]
16.9 [4.95]
2.0
24.9 [7.30]
16.1 [4.72]
2.0
24.5 [7.18]
15.4 [4.51]
2.0
24.0 [7.03]
19.7 [5.77]
2.0
23.6 [6.92]
18.8 [5.51]
2.0
23.2 [6.80]
18.0 [5.28]
2.0
23.0 [6.74]
21.0 [6.15]
2.0
22.6 [6.62]
20.1 [5.89]
2.0
22.2 [6.51]
19.1 [5.60]
2.0
105
[40.6]
Total BTUH [kW]
Sens BTUH [kW]
Power
24.0 [7.03]
16.3 [4.78]
2.1
23.6 [6.92]
15.5 [4.54]
2.1
23.1 [6.77]
14.8 [4.34]
2.1
22.6 [6.62]
19.1 [5.60]
2.1
22.2 [6.51]
18.2 [5.33]
2.1
21.8 [6.39]
17.4 [5.10]
2.1
21.7 [6.36]
20.4 [5.98]
2.1
21.3 [6.24]
19.5 [5.71]
2.1
20.9 [6.13]
18.5 [5.42]
2.1
110
[43.3]
Total BTUH [kW]
Sens BTUH [kW]
Power
22.7 [6.65]
15.6 [4.57]
2.2
22.3 [6.54]
14.9 [4.37]
2.2
21.9 [6.42]
14.2 [4.16]
2.2
21.4 [6.27]
18.5 [5.42]
2.2
21.0 [6.15]
17.6 [5.16]
2.2
20.6 [6.04]
16.8 [4.92]
2.2
20.4 [5.98]
19.7 [5.77]
2.2
20.0 [5.86]
18.9 [5.54]
2.2
19.6 [5.74]
18.0 [5.28]
2.2
115
[46.1]
Total BTUH [kW]
Sens BTUH [kW]
Power
21.6 [6.33]
15.1 [4.43]
2.3
21.2 [6.21]
14.4 [4.22]
2.3
20.8 [6.10]
13.7 [4.02]
2.3
20.2 [5.92]
17.9 [5.25]
2.3
19.9 [5.83]
17.1 [5.01]
2.3
19.5 [5.71]
16.3 [4.78]
2.3
19.3 [5.66]
19.2 [5.63]
2.3
18.9 [5.54]
18.3 [5.36]
2.3
18.6 [5.45]
17.5 [5.13]
2.3
HEATING PERFORMANCE DATA—RQPW-024
IDB 60°F [15.5°C] 70°F [21.1°C] 80°F [26.7°C]
CFM [L/s] 940 [444] 850 [401] 760 [359] 940 [444] 850 [401] 760 [359] 940 [444] 850 [401] 760 [359]
O
U
T
D
O
O
R
D
R
Y
B
U
L
B
T
E
M
P
E
R
A
T
U
R
E
°F
[°C]
0
[-17.8]
Total BTUH [kW]
Power
8.9 [2.61]
1.4
8.8 [2.58]
1.4
8.7 [2.55]
1.4
8.0 [2.34]
1.6
7.9 [2.32]
1.6
7.9 [2.32]
1.6
6.5 [1.90]
1.8
6.5 [1.90]
1.8
6.4 [1.88]
1.9
5
[-15]
Total BTUH [kW]
Power
10.5 [3.08]
1.4
10.4 [3.05]
1.4
10.3 [3.02]
1.5
9.6 [2.81]
1.6
9.5 [2.78]
1.6
9.5 [2.78]
1.6
8.2 [2.40]
1.8
8.1 [2.37]
1.9
8.1 [2.37]
1.9
15
[-9.4]
Total BTUH [kW]
Power
13.8 [4.04]
1.5
13.7 [4.02]
1.5
13.6 [3.99]
1.5
12.9 [3.78]
1.6
12.8 [3.75]
1.7
12.7 [3.72]
1.7
11.4 [3.34]
1.9
11.4 [3.34]
1.9
11.3 [3.31]
1.9
10
[-12.2]
Total BTUH [kW]
Power
12.1 [3.55]
1.4
12.0 [3.52]
1.5
12.0 [3.52]
1.5
11.2 [3.28]
1.6
11.2 [3.28]
1.6
11.1 [3.25]
1.7
9.8 [2.87]
1.9
9.7 [2.84]
1.9
9.7 [2.84]
1.9
25
[-3.9]
Total BTUH [kW]
Power
17.0 [4.98]
1.5
16.9 [4.95]
1.5
16.8 [4.92]
1.5
16.1 [4.72]
1.7
16.0 [4.69]
1.7
15.9 [4.66]
1.7
14.7 [4.31]
1.9
14.6 [4.28]
1.9
14.5 [4.25]
2.0
35
[1.7]
Total BTUH [kW]
Power
20.3 [5.95]
1.5
20.1 [5.89]
1.6
20.0 [5.86]
1.6
19.4 [5.69]
1.7
19.3 [5.66]
1.7
19.1 [5.60]
1.8
18.0 [5.28]
2.0
17.8 [5.22]
2.0
17.7 [5.19]
2.0
20
[-6.7]
Total BTUH [kW]
Power
15.4 [4.51]
1.5
15.3 [4.48]
1.5
15.2 [4.45]
1.5
14.5 [4.25]
1.7
14.4 [4.22]
1.7
14.3 [4.19]
1.7
13.1 [3.84]
1.9
13.0 [3.81]
1.9
12.9 [3.78]
1.9
30
[-1.1]
Total BTUH [kW]
Power
18.7 [5.48]
1.5
18.5 [5.42]
1.5
18.4 [5.39]
1.6
17.8 [5.22]
1.7
17.6 [5.16]
1.7
17.5 [5.13]
1.7
16.3 [4.78]
1.9
16.2 [4.75]
2.0
16.1 [4.72]
2.0
40
[4.4]
Total BTUH [kW]
Power
21.9 [6.42]
1.6
21.8 [6.39]
1.6
21.6 [6.33]
1.6
21.0 [6.15]
1.7
20.9 [6.13]
1.8
20.7 [6.07]
1.8
19.6 [5.74]
2.0
19.5 [5.71]
2.0
19.3 [5.66]
2.0
50
[10]
Total BTUH [kW]
Power
25.2 [7.39]
1.6
25.0 [7.33]
1.6
24.8 [7.27]
1.6
24.3 [7.12]
1.8
24.1 [7.06]
1.8
24.0 [7.03]
1.8
22.9 [6.71]
2.0
22.7 [6.65]
2.0
22.5 [6.59]
2.1
45
[7.2]
Total BTUH [kW]
Power
23.6 [6.92]
1.6
23.4 [6.86]
1.6
23.2 [6.80]
1.6
22.7 [6.65]
1.8
22.5 [6.59]
1.8
22.3 [6.54]
1.8
21.2 [6.21]
2.0
21.1 [6.18]
2.0
20.9 [6.13]
2.1
IDB—Indoor air dry bulb [ ] Designates Metric Conversions
NOTES:
➀When the entering air dry bulb is other than 80°F [27°C], adjust the sensible capacity
from the table by adding [1.10 x CFM x (1 – DR) x (dbE – 80)].
DR —Depression ratio
dbE —Entering air dry bulb
wbE—Entering air wet bulb
Total —Total capacity x 1000 BTUH
Sens —Sensible capacity x 1000 BTUH
Power —KW input

Air Gross Systems Performance Data
RQPW Series
12
COOLING PERFORMANCE DATA—RQPW-025
ENTERING INDOOR AIR @ 80°F [26.7°C] dbE ➀
wbE 71°F [21.7°C] 67°F [19.4°C] 63°F [17.2°C]
CFM [L/s] 930 [439] 850 [401] 760 [359] 930 [439] 850 [401] 760 [359] 930 [439] 850 [401] 760 [359]
DR ➀.15 .17 .19 .15 .17 .19 .15 .17 .19
O
U
T
D
O
O
R
D
R
Y
B
U
L
B
T
E
M
P
E
R
A
T
U
R
E
°F
[°C]
75
[23.9]
Total BTUH [kW]
Sens BTUH [kW]
Power
29.4 [8.6]
18.9 [5.5]
1.4
28.9 [8.5]
17.6 [5.2]
1.4
28.3 [8.3]
16.2 [4.8]
1.4
28.0 [8.2]
21.3 [6.3]
1.4
27.6 [8.1]
20.0 [5.9]
1.4
27.0 [7.9]
18.4 [5.4]
1.4
26.6 [7.8]
23.4 [6.9]
1.4
26.2 [7.7]
22.0 [6.5]
1.4
25.7 [7.5]
20.4 [6.0]
1.4
80
[26.7]
Total BTUH [kW]
Sens BTUH [kW]
Power
28.8 [8.4]
18.6 [5.5]
1.5
28.3 [8.3]
17.3 [5.1]
1.5
27.7 [8.1]
15.9 [4.7]
1.5
27.4 [8.0]
21.0 [6.2]
1.5
26.9 [7.9]
19.6 [5.8]
1.5
26.4 [7.7]
18.2 [5.3]
1.5
26.0 [7.6]
23.0 [6.8]
1.5
25.5 [7.5]
21.5 [6.3]
1.5
25.1 [7.4]
20.1 [5.9]
1.5
85
[29.4]
Total BTUH [kW]
Sens BTUH [kW]
Power
28.0 [8.2]
18.2 [5.3]
1.6
27.5 [8.1]
16.9 [5.0]
1.6
27.0 [7.9]
15.6 [4.6]
1.6
26.7 [7.8]
20.7 [6.1]
1.6
26.2 [7.7]
19.3 [5.7]
1.6
25.7 [7.5]
17.9 [5.3]
1.6
25.2 [7.4]
22.5 [6.6]
1.6
24.8 [7.3]
21.2 [6.2]
1.6
24.3 [7.1]
19.7 [5.8]
1.6
90
[32.2]
Total BTUH [kW]
Sens BTUH [kW]
Power
27.1 [7.9]
17.6 [5.2]
1.7
26.7 [7.8]
16.5 [4.8]
1.7
26.2 [7.7]
15.2 [4.5]
1.7
25.8 [7.6]
20.1 [5.9]
1.7
25.3 [7.4]
18.8 [5.5]
1.7
24.9 [7.3]
17.5 [5.1]
1.7
24.4 [7.2]
22.1 [6.5]
1.7
23.9 [7.0]
20.7 [6.1]
1.7
23.5 [6.9]
19.3 [5.7]
1.7
95
[35]
Total BTUH [kW]
Sens BTUH [kW]
Power
26.1 [7.6]
17.1 [5.0]
1.8
25.7 [7.5]
16.0 [4.7]
1.8
25.2 [7.4]
14.7 [4.3]
1.8
24.8 [7.3]
19.6 [5.8]
1.8
24.4 [7.2]
18.4 [5.4]
1.8
23.9 [7.0]
17.0 [5.0]
1.8
23.4 [6.9]
21.6 [6.3]
1.8
23.0 [6.7]
20.3 [6.0]
1.8
22.5 [6.6]
18.8 [5.5]
1.8
100
[37.8]
Total BTUH [kW]
Sens BTUH [kW]
Power
25.0 [7.3]
16.6 [4.9]
2.0
24.6 [7.2]
15.5 [4.6]
1.9
24.1 [7.1]
14.3 [4.2]
1.9
23.7 [6.9]
19.1 [5.6]
2.0
23.3 [6.8]
17.9 [5.3]
1.9
22.8 [6.7]
16.5 [4.8]
1.9
22.2 [6.5]
21.0 [6.2]
1.9
21.9 [6.4]
19.8 [5.8]
1.9
21.4 [6.3]
18.3 [5.4]
1.9
105
[40.6]
Total BTUH [kW]
Sens BTUH [kW]
Power
23.8 [7.0]
16.0 [4.7]
2.1
23.4 [6.9]
14.9 [4.4]
2.1
22.9 [6.7]
13.7 [4.0]
2.0
22.4 [6.6]
18.4 [5.4]
2.1
22.0 [6.4]
17.2 [5.1]
2.1
21.6 [6.3]
16.0 [4.7]
2.0
21.0 [6.2]
20.4 [6.0]
2.1
20.6 [6.0]
19.1 [5.6]
2.1
20.2 [5.9]
17.8 [5.2]
2.0
110
[43.3]
Total BTUH [kW]
Sens BTUH [kW]
Power
22.4 [6.6]
15.3 [4.5]
2.2
22.0 [6.4]
14.3 [4.2]
2.2
21.6 [6.3]
13.2 [3.9]
2.2
21.0 [6.2]
17.7 [5.2]
2.2
20.7 [6.1]
16.7 [4.9]
2.2
20.3 [5.9]
15.5 [4.6]
2.2
19.6 [5.7]
19.6 [5.8]
2.2
19.3 [5.7]
18.6 [5.5]
2.2
18.9 [5.5]
17.3 [5.1]
2.2
115
[46.1]
Total BTUH [kW]
Sens BTUH [kW]
Power
20.9 [6.1]
14.6 [4.3]
2.4
20.6 [6.0]
13.7 [4.0]
2.3
20.2 [5.9]
12.6 [3.7]
2.3
19.5 [5.7]
17.0 [5.0]
2.3
19.2 [5.6]
16.0 [4.7]
2.3
18.8 [5.5]
14.8 [4.3]
2.3
18.1 [5.3]
18.1 [5.3]
2.3
17.8 [5.2]
17.8 [5.2]
2.3
17.5 [5.1]
16.7 [4.9]
2.3
HEATING PERFORMANCE DATA—RQPW-025
IDB 60°F [15.5°C] 70°F [21.1°C] 80°F [26.7°C]
CFM [L/s] 930 [439] 850 [401] 760 [359] 930 [439] 850 [401] 760 [359] 930 [439] 850 [401] 760 [359]
O
U
T
D
O
O
R
D
R
Y
B
U
L
B
T
E
M
P
E
R
A
T
U
R
E
°F
[°C]
0
[-17.8]
Total BTUH [kW]
Power
9.0 [2.6]
1.3
9.0 [2.6]
1.3
8.9 [2.6]
1.4
7.9 [2.3]
1.5
7.8 [2.3]
1.5
7.8 [2.3]
1.5
6.7 [2.0]
1.7
6.7 [2.0]
1.8
6.6 [1.9]
1.8
5
[-15]
Total BTUH [kW]
Power
10.7 [3.1]
1.3
10.6 [3.1]
1.4
10.5 [3.1]
1.4
9.5 [2.8]
1.5
9.4 [2.8]
1.5
9.4 [2.8]
1.6
8.3 [2.4]
1.8
8.3 [2.4]
1.8
8.2 [2.4]
1.8
15
[-9.4]
Total BTUH [kW]
Power
13.9 [4.1]
1.4
13.8 [4.0]
1.4
13.7 [4.0]
1.4
12.8 [3.8]
1.6
12.7 [3.7]
1.6
12.6 [3.7]
1.6
11.6 [3.4]
1.8
11.5 [3.4]
1.8
11.4 [3.3]
1.9
10
[-12.2]
Total BTUH [kW]
Power
12.3 [3.6]
1.4
12.2 [3.6]
1.4
12.1 [3.5]
1.4
11.1 [3.3]
1.5
11.1 [3.3]
1.6
11.0 [3.2]
1.6
10.0 [2.9]
1.8
9.9 [2.9]
1.8
9.8 [2.9]
1.8
25
[-3.9]
Total BTUH [kW]
Power
17.2 [5.0]
1.4
17.1 [5.0]
1.4
16.9 [5.0]
1.5
16.0 [4.7]
1.6
15.9 [4.7]
1.6
15.8 [4.6]
1.6
14.9 [4.4]
1.8
14.8 [4.3]
1.9
14.7 [4.3]
1.9
35
[1.7]
Total BTUH [kW]
Power
20.4 [6.0]
1.5
20.3 [5.9]
1.5
20.2 [5.9]
1.5
19.3 [5.7]
1.6
19.2 [5.6]
1.7
19.0 [5.6]
1.7
18.1 [5.3]
1.9
18.0 [5.3]
1.9
17.9 [5.2]
1.9
20
[-6.7]
Total BTUH [kW]
Power
15.6 [4.6]
1.4
15.5 [4.5]
1.4
15.3 [4.5]
1.4
14.4 [4.2]
1.6
14.3 [4.2]
1.6
14.2 [4.2]
1.6
13.2 [3.9]
1.8
13.1 [3.8]
1.9
13.0 [3.8]
1.9
30
[-1.1]
Total BTUH [kW]
Power
18.8 [5.5]
1.4
18.7 [5.5]
1.5
18.5 [5.4]
1.5
17.7 [5.2]
1.6
17.5 [5.1]
1.6
17.4 [5.1]
1.7
16.5 [4.8]
1.9
16.4 [4.8]
1.9
16.3 [4.8]
1.9
40
[4.4]
Total BTUH [kW]
Power
22.1 [6.5]
1.5
21.9 [6.4]
1.5
21.8 [6.4]
1.5
20.9 [6.1]
1.7
20.8 [6.1]
1.7
20.6 [6.0]
1.7
19.7 [5.8]
1.9
19.6 [5.7]
1.9
19.5 [5.7]
2.0
50
[10]
Total BTUH [kW]
Power
25.3 [7.4]
1.5
25.2 [7.4]
1.5
25.0 [7.3]
1.6
24.2 [7.1]
1.7
24.0 [7.0]
1.7
23.8 [7.0]
1.7
23.0 [6.7]
1.9
22.9 [6.7]
2.0
22.7 [6.7]
2.0
45
[7.2]
Total BTUH [kW]
Power
23.7 [6.9]
1.5
23.5 [6.9]
1.5
23.4 [6.9]
1.5
22.5 [6.6]
1.7
22.4 [6.6]
1.7
22.2 [6.5]
1.7
21.4 [6.3]
1.9
21.2 [6.2]
2.0
21.1 [6.2]
2.0
IDB—Indoor air dry bulb [ ] Designates Metric Conversions
NOTES:
➀When the entering air dry bulb is other than 80°F [27°C], adjust the sensible capacity
from the table by adding [1.10 x CFM x (1 – DR) x (dbE – 80)].
DR —Depression ratio
dbE —Entering air dry bulb
wbE—Entering air wet bulb
Total —Total capacity x 1000 BTUH
Sens —Sensible capacity x 1000 BTUH
Power —KW input

Air Gross Systems Performance Data
RQPW Series
13
COOLING PERFORMANCE DATA—RQPW-030
ENTERING INDOOR AIR @ 80°F [26.7°C] dbE ➀
wbE 71°F [21.7°C] 67°F [19.4°C] 63°F [17.2°C]
CFM [L/s] 1160 [547] 1050 [496] 940 [444] 1160 [547] 1050 [496] 940 [444] 1160 [547] 1050 [496] 940 [444]
DR ➀.15 .13 .11 .15 .13 .11 .15 .13 .11
O
U
T
D
O
O
R
D
R
Y
B
U
L
B
T
E
M
P
E
R
A
T
U
R
E
°F
[°C]
75
[23.9]
Total BTUH [kW]
Sens BTUH [kW]
Power
36.9 [10.81]
23.7 [6.95]
1.9
36.2 [10.61]
22.6 [6.62]
1.9
35.5 [10.40]
21.5 [6.30]
1.9
34.9 [10.23]
26.9 [7.88]
1.9
34.2 [10.02]
25.7 [7.53]
1.9
33.6 [9.85]
24.5 [7.18]
1.9
33.5 [9.82]
28.4 [8.32]
1.9
32.9 [9.64]
27.1 [7.94]
1.9
32.3 [9.47]
25.8 [7.56]
1.9
80
[26.7]
Total BTUH [kW]
Sens BTUH [kW]
Power
35.7 [10.46]
23.1 [6.77]
2.0
35.1 [10.29]
22.0 [6.45]
2.0
34.4 [10.08]
21.0 [6.15]
2.0
33.7 [9.88]
26.3 [7.71]
2.0
33.1 [9.70]
25.2 [7.39]
2.0
32.5 [9.52]
24.0 [7.03]
2.0
32.3 [9.47]
27.8 [8.15]
2.0
31.8 [9.32]
26.5 [7.77]
2.0
31.2 [9.14]
25.3 [7.41]
2.0
85
[29.4]
Total BTUH [kW]
Sens BTUH [kW]
Power
34.6 [10.14]
22.5 [6.59]
2.1
33.9 [9.94]
21.5 [6.30]
2.1
33.3 [9.76]
20.5 [6.01]
2.1
32.6 [9.55]
25.8 [7.56]
2.1
32.0 [9.38]
24.6 [7.21]
2.1
31.4 [9.20]
23.5 [6.89]
2.1
31.2 [9.14]
27.2 [7.97]
2.1
30.6 [8.97]
26.0 [7.62]
2.1
30.1 [8.82]
24.8 [7.27]
2.1
90
[32.2]
Total BTUH [kW]
Sens BTUH [kW]
Power
33.4 [9.79]
21.9 [6.42]
2.2
32.8 [9.61]
20.9 [6.13]
2.2
32.2 [9.44]
20.0 [5.86]
2.2
31.4 [9.20]
25.2 [7.39]
2.2
30.9 [9.06]
24.1 [7.06]
2.2
30.3 [8.88]
23.0 [6.74]
2.2
30.1 [8.82]
26.6 [7.80]
2.2
29.5 [8.65]
25.4 [7.44]
2.2
29.0 [8.50]
24.3 [7.12]
2.2
95
[35]
Total BTUH [kW]
Sens BTUH [kW]
Power
32.3 [9.47]
21.4 [6.27]
2.3
31.7 [9.29]
20.4 [5.98]
2.3
31.1 [9.11]
19.5 [5.71]
2.3
30.3 [8.88]
24.7 [7.24]
2.3
29.8 [8.73]
23.6 [6.92]
2.3
29.2 [8.56]
22.5 [6.59]
2.2
28.9 [8.47]
26.1 [7.65]
2.3
28.4 [8.32]
24.9 [7.30]
2.3
27.9 [8.18]
23.8 [6.98]
2.3
100
[37.8]
Total BTUH [kW]
Sens BTUH [kW]
Power
31.1 [9.11]
20.8 [6.10]
2.4
30.6 [8.97]
19.9 [5.83]
2.4
30.0 [8.79]
19.0 [5.57]
2.4
29.1 [8.53]
24.1 [7.06]
2.4
28.6 [8.38]
23.0 [6.74]
2.4
28.1 [8.24]
22.0 [6.45]
2.3
27.8 [8.15]
25.5 [7.47]
2.4
27.3 [8.00]
24.4 [7.15]
2.4
26.8 [7.85]
23.3 [6.83]
2.4
105
[40.6]
Total BTUH [kW]
Sens BTUH [kW]
Power
30.0 [8.79]
20.3 [5.95]
2.5
29.4 [8.62]
19.4 [5.69]
2.5
28.9 [8.47]
18.5 [5.42]
2.5
28.0 [8.21]
23.6 [6.92]
2.5
27.5 [8.06]
22.5 [6.59]
2.5
27.0 [7.91]
21.5 [6.30]
2.4
26.6 [7.80]
25.0 [7.33]
2.5
26.1 [7.65]
23.9 [7.00]
2.5
25.6 [7.50]
22.8 [6.68]
2.5
110
[43.3]
Total BTUH [kW]
Sens BTUH [kW]
Power
28.7 [8.41]
19.7 [5.77]
2.6
28.2 [8.26]
18.8 [5.51]
2.6
27.7 [8.12]
18.0 [5.28]
2.6
26.7 [7.83]
23.0 [6.74]
2.6
26.2 [7.68]
22.0 [6.45]
2.6
25.8 [7.56]
21.0 [6.15]
2.5
25.4 [7.44]
24.4 [7.15]
2.6
24.9 [7.30]
23.4 [6.86]
2.6
24.5 [7.18]
22.3 [6.54]
2.6
115
[46.1]
Total BTUH [kW]
Sens BTUH [kW]
Power
27.4 [8.03]
19.2 [5.63]
2.7
26.9 [7.88]
18.3 [5.36]
2.7
26.4 [7.74]
17.5 [5.13]
2.7
25.4 [7.44]
22.5 [6.59]
2.7
25.0 [7.33]
21.5 [6.30]
2.6
24.5 [7.18]
20.5 [6.01]
2.6
24.1 [7.06]
23.9 [7.00]
2.7
23.6 [6.92]
22.8 [6.68]
2.7
23.2 [6.80]
21.8 [6.39]
2.7
HEATING PERFORMANCE DATA—RQPW-030
5
[-15]
Total BTUH [kW]
Power
11.5 [3.37]
1.6
11.4 [3.34]
1.6
11.3 [3.31]
1.6
9.9 [2.90]
1.8
9.8 [2.87]
1.8
9.8 [2.87]
1.9
8.5 [2.49]
2.0
8.4 [2.46]
2.1
8.4 [2.46]
2.1
IDB
15
[-9.4]
60°F [15.5°C]
Total BTUH [kW]
Power
15.3 [4.48]
1.7
70°F [21.1°C]
15.2 [4.45]
1.7
15.1 [4.43]
1.7
80°F [26.7°C]
13.8 [4.04]
1.9
13.7 [4.02]
1.9
CFM [L/s]
13.6 [3.99]
1.9
12.3 [3.60]
2.1
1160 [547] 1050 [496] 940 [444] 1160 [547] 1050 [496] 940 [444] 1160 [547] 1050 [496] 940 [444]
12.3 [3.60]
2.1
12.2 [3.58]
2.2
O
U
T
D
O
O
R
D
R
Y
B
U
L
B
T
E
M
P
E
R
A
T
U
R
E
°F
[°C]
0
[-17.8]
Total BTUH [kW]
Power
9.5 [2.78]
1.6
9.5 [2.78]
1.6
9.4 [2.75]
1.6
8.0 [2.34]
1.8
7.9 [2.32]
1.8
7.9 [2.32]
1.8
6.6 [1.93]
2.0
6.5 [1.90]
2.0
6.5 [1.90]
2.1
10
[-12.2]
Total BTUH [kW]
Power
13.4 [3.93]
1.6
13.3 [3.90]
1.7
13.2 [3.87]
1.7
11.8 [3.46]
1.9
11.8 [3.46]
1.9
11.7 [3.43]
1.9
10.4 [3.05]
2.1
10.3 [3.02]
2.1
10.3 [3.02]
2.1
25
[-3.9]
Total BTUH [kW]
Power
19.2 [5.63]
1.7
19.0 [5.57]
1.8
18.9 [5.54]
1.8
17.6 [5.16]
1.9
17.5 [5.13]
2.0
17.4 [5.10]
2.0
16.2 [4.75]
2.2
16.1 [4.72]
2.2
16.0 [4.69]
2.2
35
[1.7]
Total BTUH [kW]
Power
23.0 [6.74]
1.8
22.8 [6.68]
1.8
22.7 [6.65]
1.8
21.5 [6.30]
2.0
21.3 [6.24]
2.0
21.2 [6.21]
2.1
20.0 [5.86]
2.2
19.9 [5.83]
2.3
19.7 [5.77]
2.3
20
[-6.7]
Total BTUH [kW]
Power
17.2 [5.04]
1.7
17.1 [5.01]
1.7
17.0 [4.98]
1.7
15.7 [4.60]
1.9
15.6 [4.57]
1.9
15.5 [4.54]
2.0
14.3 [4.19]
2.1
14.2 [4.16]
2.2
14.1 [4.13]
2.2
30
[-1.1]
Total BTUH [kW]
Power
21.1 [6.18]
1.8
20.9 [6.13]
1.8
20.8 [6.10]
1.8
19.5 [5.71]
2.0
19.4 [5.69]
2.0
19.3 [5.66]
2.0
18.1 [5.30]
2.2
18.0 [5.28]
2.2
17.9 [5.25]
2.3
40
[4.4]
Total BTUH [kW]
Power
24.9 [7.30]
1.8
24.8 [7.27]
1.8
24.6 [7.21]
1.9
23.4 [6.86]
2.0
23.2 [6.80]
2.1
23.0 [6.74]
2.1
22.0 [6.45]
2.3
21.8 [6.39]
2.3
21.6 [6.33]
2.3
50
[10]
Total BTUH [kW]
Power
28.8 [8.44]
1.9
28.6 [8.38]
1.9
28.4 [8.32]
1.9
27.2 [7.97]
2.1
27.0 [7.91]
2.1
26.8 [7.85]
2.2
25.8 [7.56]
2.3
25.6 [7.50]
2.4
25.4 [7.44]
2.4
45
[7.2]
Total BTUH [kW]
Power
26.9 [7.88]
1.9
26.7 [7.83]
1.9
26.5 [7.77]
1.9
25.3 [7.41]
2.1
25.1 [7.36]
2.1
24.9 [7.30]
2.1
23.9 [7.00]
2.3
23.7 [6.95]
2.3
23.5 [6.89]
2.4
IDB—Indoor air dry bulb [ ] Designates Metric Conversions
NOTES:
➀When the entering air dry bulb is other than 80°F [27°C], adjust the sensible capacity
from the table by adding [1.10 x CFM x (1 – DR) x (dbE – 80)].
DR —Depression ratio
dbE —Entering air dry bulb
wbE—Entering air wet bulb
Total —Total capacity x 1000 BTUH
Sens —Sensible capacity x 1000 BTUH
Power —KW input

Air Gross Systems Performance Data
RQPW Series
14
COOLING PERFORMANCE DATA—RQPW-036
ENTERING INDOOR AIR @ 80°F [26.7°C] dbE ➀
wbE 71°F [21.7°C] 67°F [19.4°C] 63°F [17.2°C]
CFM [L/s] 1380 [651] 1250 [590] 1120 [528] 1380 [651] 1250 [590] 1120 [528] 1380 [651] 1250 [590] 1120 [528]
DR ➀.19 .18 .16 .19 .18 .16 .19 .18 .16
O
U
T
D
O
O
R
D
R
Y
B
U
L
B
T
E
M
P
E
R
A
T
U
R
E
°F
[°C]
75
[23.9]
Total BTUH [kW]
Sens BTUH [kW]
Power
45.0 [13.19]
27.7 [8.12]
2.3
44.2 [12.95]
26.5 [7.77]
2.2
43.4 [12.72]
25.3 [7.41]
2.2
42.9 [12.57]
31.8 [9.32]
2.2
42.2 [12.37]
30.4 [8.91]
2.2
41.4 [12.13]
28.9 [8.47]
2.2
41.8 [12.25]
34.2 [10.02]
2.2
41.0 [12.02]
32.6 [9.55]
2.2
40.3 [11.81]
31.1 [9.11]
2.2
80
[26.7]
Total BTUH [kW]
Sens BTUH [kW]
Power
43.9 [12.87]
27.1 [7.94]
2.4
43.1 [12.63]
25.9 [7.59]
2.4
42.3 [12.40]
24.7 [7.24]
2.4
41.8 [12.25]
31.2 [9.14]
2.4
41.1 [12.05]
29.8 [8.73]
2.4
40.3 [11.81]
28.4 [8.32]
2.3
40.7 [11.93]
33.5 [9.82]
2.4
39.9 [11.69]
32.0 [9.38]
2.3
39.2 [11.49]
30.5 [8.94]
2.3
85
[29.4]
Total BTUH [kW]
Sens BTUH [kW]
Power
42.6 [12.48]
26.5 [7.77]
2.5
41.8 [12.25]
25.3 [7.41]
2.5
41.0 [12.02]
24.1 [7.06]
2.5
40.5 [11.87]
30.5 [8.94]
2.5
39.8 [11.66]
29.1 [8.53]
2.5
39.1 [11.46]
27.8 [8.15]
2.5
39.4 [11.55]
32.9 [9.64]
2.5
38.7 [11.34]
31.4 [9.20]
2.5
37.9 [11.11]
29.9 [8.76]
2.5
90
[32.2]
Total BTUH [kW]
Sens BTUH [kW]
Power
41.1 [12.05]
25.7 [7.53]
2.7
40.3 [11.81]
24.6 [7.21]
2.7
39.6 [11.61]
23.5 [6.89]
2.6
39.0 [11.43]
29.8 [8.73]
2.7
38.3 [11.22]
28.5 [8.35]
2.6
37.6 [11.02]
27.1 [7.94]
2.6
37.9 [11.11]
32.2 [9.44]
2.6
37.2 [10.90]
30.7 [9.00]
2.6
36.5 [10.70]
29.3 [8.59]
2.6
95
[35]
Total BTUH [kW]
Sens BTUH [kW]
Power
39.5 [11.58]
25.0 [7.33]
2.8
38.8 [11.37]
23.9 [7.00]
2.8
38.1 [11.17]
22.8 [6.68]
2.8
37.4 [10.96]
29.1 [8.53]
2.8
36.8 [10.79]
27.8 [8.15]
2.8
36.1 [10.58]
26.5 [7.77]
2.8
36.3 [10.64]
31.4 [9.20]
2.8
35.6 [10.43]
30.0 [8.79]
2.8
35.0 [10.26]
28.6 [8.38]
2.7
100
[37.8]
Total BTUH [kW]
Sens BTUH [kW]
Power
37.8 [11.08]
24.2 [7.09]
3.0
37.1 [10.87]
23.2 [6.80]
2.9
36.5 [10.70]
22.1 [6.48]
2.9
35.8 [10.49]
28.3 [8.29]
2.9
35.1 [10.29]
27.0 [7.91]
2.9
34.5 [10.11]
25.8 [7.56]
2.9
34.6 [10.14]
30.7 [9.00]
2.9
34.0 [9.96]
29.3 [8.59]
2.9
33.4 [9.79]
27.9 [8.18]
2.9
105
[40.6]
Total BTUH [kW]
Sens BTUH [kW]
Power
36.1 [10.58]
23.4 [6.86]
3.1
35.5 [10.40]
22.4 [6.56]
3.1
34.8 [10.20]
21.3 [6.24]
3.1
34.1 [9.99]
27.5 [8.06]
3.1
33.5 [9.82]
26.3 [7.71]
3.1
32.8 [9.61]
25.0 [7.33]
3.0
32.9 [9.64]
29.9 [8.76]
3.1
32.3 [9.47]
28.5 [8.35]
3.0
31.7 [9.29]
27.2 [7.97]
3.0
110
[43.3]
Total BTUH [kW]
Sens BTUH [kW]
Power
34.4 [10.08]
22.6 [6.62]
3.3
33.8 [9.91]
21.6 [6.33]
3.2
33.2 [9.73]
20.6 [6.04]
3.2
32.4 [9.50]
26.7 [7.83]
3.2
31.8 [9.32]
25.5 [7.47]
3.2
31.2 [9.14]
24.3 [7.12]
3.2
31.2 [9.14]
29.0 [8.50]
3.2
30.7 [9.00]
27.7 [8.12]
3.2
30.1 [8.82]
26.4 [7.74]
3.2
115
[46.1]
Total BTUH [kW]
Sens BTUH [kW]
Power
32.8 [9.61]
21.8 [6.39]
3.4
32.2 [9.44]
20.8 [6.10]
3.4
31.7 [9.29]
19.8 [5.80]
3.3
30.8 [9.03]
25.8 [7.56]
3.4
30.2 [8.85]
24.7 [7.24]
3.3
29.7 [8.70]
23.5 [6.89]
3.3
29.6 [8.67]
28.2 [8.26]
3.4
29.1 [8.53]
26.9 [7.88]
3.3
28.6 [8.38]
25.7 [7.53]
3.3
HEATING PERFORMANCE DATA—RQPW-036
5
[-15]
Total BTUH [kW]
Power
14.1 [4.13]
1.9
14.0 [4.10]
1.9
13.9 [4.07]
1.9
12.1 [3.55]
2.1
12.0 [3.52]
2.2
11.9 [3.49]
2.2
10.7 [3.14]
2.4
10.6 [3.11]
2.5
10.6 [3.11]
2.5
IDB
15
[-9.4]
60°F [15.5°C]
Total BTUH [kW]
Power
19.0 [5.57]
2.0
70°F [21.1°C]
18.9 [5.54]
2.0
18.8 [5.51]
2.0
80°F [26.7°C]
17.0 [4.98]
2.2
16.9 [4.95]
2.2
CFM [L/s]
16.7 [4.89]
2.3
15.6 [4.57]
2.5
1380 [651] 1250 [590] 1120 [528] 1380 [651] 1250 [590] 1120 [528] 1380 [651] 1250 [590] 1120 [528]
15.5 [4.54]
2.5
15.4 [4.51]
2.6
O
U
T
D
O
O
R
D
R
Y
B
U
L
B
T
E
M
P
E
R
A
T
U
R
E
°F
[°C]
0
[-17.8]
Total BTUH [kW]
Power
11.7 [3.43]
1.8
11.6 [3.40]
1.9
11.5 [3.37]
1.9
9.6 [2.81]
2.1
9.6 [2.81]
2.1
9.5 [2.78]
2.1
8.3 [2.43]
2.4
8.2 [2.40]
2.4
8.1 [2.37]
2.4
10
[-12.2]
Total BTUH [kW]
Power
16.6 [4.86]
1.9
16.5 [4.84]
1.9
16.3 [4.78]
2.0
14.5 [4.25]
2.2
14.4 [4.22]
2.2
14.3 [4.19]
2.2
13.2 [3.87]
2.5
13.1 [3.84]
2.5
13.0 [3.81]
2.5
25
[-3.9]
Total BTUH [kW]
Power
23.9 [7.00]
2.0
23.8 [6.98]
2.1
23.6 [6.92]
2.1
21.9 [6.42]
2.3
21.7 [6.36]
2.3
21.6 [6.33]
2.4
20.5 [6.01]
2.6
20.4 [5.98]
2.6
20.2 [5.92]
2.7
35
[1.7]
Total BTUH [kW]
Power
28.8 [8.44]
2.1
28.6 [8.38]
2.1
28.4 [8.32]
2.2
26.8 [7.85]
2.4
26.6 [7.80]
2.4
26.4 [7.74]
2.4
25.4 [7.44]
2.7
25.2 [7.39]
2.7
25.1 [7.36]
2.7
20
[-6.7]
Total BTUH [kW]
Power
21.5 [6.30]
2.0
21.3 [6.24]
2.0
21.2 [6.21]
2.1
19.4 [5.69]
2.3
19.3 [5.66]
2.3
19.2 [5.63]
2.3
18.1 [5.30]
2.5
17.9 [5.25]
2.6
17.8 [5.22]
2.6
30
[-1.1]
Total BTUH [kW]
Power
26.4 [7.74]
2.1
26.2 [7.68]
2.1
26.0 [7.62]
2.1
24.3 [7.12]
2.3
24.2 [7.09]
2.4
24.0 [7.03]
2.4
23.0 [6.74]
2.6
22.8 [6.68]
2.7
22.6 [6.62]
2.7
40
[4.4]
Total BTUH [kW]
Power
31.3 [9.17]
2.2
31.1 [9.11]
2.2
30.8 [9.03]
2.2
29.2 [8.56]
2.4
29.0 [8.50]
2.4
28.8 [8.44]
2.5
27.9 [8.18]
2.7
27.7 [8.12]
2.7
27.5 [8.06]
2.8
50
[10]
Total BTUH [kW]
Power
36.2 [10.61]
2.2
35.9 [10.52]
2.3
35.7 [10.46]
2.3
34.2 [10.02]
2.5
33.9 [9.94]
2.5
33.7 [9.88]
2.6
32.8 [9.61]
2.8
32.5 [9.52]
2.8
32.3 [9.47]
2.9
45
[7.2]
Total BTUH [kW]
Power
33.7 [9.88]
2.2
33.5 [9.82]
2.2
33.3 [9.76]
2.3
31.7 [9.29]
2.5
31.5 [9.23]
2.5
31.3 [9.17]
2.5
30.3 [8.88]
2.8
30.1 [8.82]
2.8
29.9 [8.76]
2.8
IDB—Indoor air dry bulb [ ] Designates Metric Conversions
NOTES:
➀When the entering air dry bulb is other than 80°F [27°C], adjust the sensible capacity
from the table by adding [1.10 x CFM x (1 – DR) x (dbE – 80)].
DR —Depression ratio
dbE —Entering air dry bulb
wbE—Entering air wet bulb
Total —Total capacity x 1000 BTUH
Sens —Sensible capacity x 1000 BTUH
Power —KW input

Air Gross Systems Performance Data
RQPW Series
15
COOLING PERFORMANCE DATA—RQPW-042
Total BTUH [kW]
Power
5
[-15]
Total BTUH [kW]
Power
16.9 [4.95]
2.6
16.8 [4.92]
2.6
16.7 [4.89]
2.7
16.0 [4.69]
3.0
15.8 [4.63]
3.1
15.7 [4.60]
3.1
14.2 [4.16]
3.4
14.1 [4.13]
3.4
14.0 [4.10]
3.5
IDB
15
[-9.4]
60°F [15.5°C]
Total BTUH [kW]
Power
23.0 [6.74]
2.7
70°F [21.1°C]
22.8 [6.68]
2.7
22.7 [6.65]
2.7
80°F [26.7°C]
22.0 [6.45]
3.1
21.8 [6.39]
3.1
CFM [L/s]
21.7 [6.36]
3.2
20.3 [5.95]
3.5
1540 [727] 1400 [661] 1260 [595] 1540 [727] 1400 [661] 1260 [595] 1540 [727] 1400 [661] 1260 [595]
20.1 [5.89]
3.5
20.0 [5.86]
3.5
O
U
T
D
O
O
R
D
R
Y
B
U
L
B
T
E
M
P
E
R
A
T
U
R
E
°F
[°C]
0
[-17.8]
Total BTUH [kW]
Power
13.9 [4.07]
2.6
13.8 [4.04]
2.6
13.7 [4.02]
2.6
12.9 [3.78]
3.0
12.8 [3.75]
3.0
12.8 [3.75]
3.1
11.2 [3.28]
3.3
11.1 [3.25]
3.4
11.1 [3.25]
3.4
10
[-12.2]
Total BTUH [kW]
Power
20.0 [5.86]
2.6
19.8 [5.80]
2.7
19.7 [5.77]
2.7
19.0 [5.57]
3.1
18.8 [5.51]
3.1
18.7 [5.48]
3.1
17.3 [5.07]
3.4
17.1 [5.01]
3.5
17.0 [4.98]
3.5
25
[-3.9]
Total BTUH [kW]
Power
29.0 [8.50]
2.8
28.8 [8.44]
2.8
28.6 [8.38]
2.8
28.0 [8.21]
3.2
27.8 [8.15]
3.2
27.6 [8.09]
3.3
26.3 [7.71]
3.5
26.1 [7.65]
3.6
26.0 [7.62]
3.6
35
[1.7]
Total BTUH [kW]
Power
35.1 [10.29]
2.8
34.8 [10.20]
2.9
34.6 [10.14]
2.9
34.1 [9.99]
3.2
33.8 [9.91]
3.3
33.6 [9.85]
3.3
32.4 [9.50]
3.6
32.1 [9.41]
3.6
31.9 [9.35]
3.7
20
[-6.7]
Total BTUH [kW]
Power
26.0 [7.62]
2.7
25.8 [7.56]
2.7
25.6 [7.50]
2.8
25.0 [7.33]
3.1
24.8 [7.27]
3.2
24.7 [7.24]
3.2
23.3 [6.83]
3.5
23.1 [6.77]
3.5
23.0 [6.74]
3.6
30
[-1.1]
Total BTUH [kW]
Power
32.0 [9.38]
2.8
31.8 [9.32]
2.8
31.6 [9.26]
2.9
31.1 [9.11]
3.2
30.8 [9.03]
3.2
30.6 [8.97]
3.3
29.3 [8.59]
3.6
29.1 [8.53]
3.6
28.9 [8.47]
3.7
40
[4.4]
Total BTUH [kW]
Power
38.1 [11.17]
2.9
37.8 [11.08]
2.9
37.5 [10.99]
2.9
37.1 [10.87]
3.3
36.8 [10.79]
3.3
36.6 [10.73]
3.4
35.4 [10.37]
3.6
35.1 [10.29]
3.7
34.9 [10.23]
3.7
50
[10]
Total BTUH [kW]
Power
44.1 [12.92]
2.9
43.8 [12.84]
3.0
43.5 [12.75]
3.0
43.1 [12.63]
3.4
42.8 [12.54]
3.4
42.5 [12.46]
3.4
41.4 [12.13]
3.7
41.1 [12.05]
3.8
40.8 [11.96]
3.8
45
[7.2]
Total BTUH [kW]
Power
41.1 [12.05]
2.9
40.8 [11.96]
2.9
40.5 [11.87]
3.0
40.1 [11.75]
3.3
39.8 [11.66]
3.4
39.6 [11.61]
3.4
38.4 [11.25]
3.7
38.1 [11.17]
3.7
37.9 [11.11]
3.8
HEATING PERFORMANCE DATA—RQPW-042
NOTES:
➀When the entering air dry bulb is other than 80°F [27°C], adjust the sensible capacity
from the table by adding [1.10 x CFM x (1 – DR) x (dbE – 80)].
DR —Depression ratio
dbE —Entering air dry bulb
wbE—Entering air wet bulb
Total —Total capacity x 1000 BTUH
Sens —Sensible capacity x 1000 BTUH
Power —KW input
IDB—Indoor air dry bulb [ ] Designates Metric Conversions
ENTERING INDOOR AIR @ 80°F [26.7°C] dbE ➀
wbE 71°F [21.7°C] 67°F [19.4°C] 63°F [17.2°C]
CFM [L/s] 1540 [727] 1400 [661] 1260 [595] 1540 [727] 1400 [661] 1260 [595] 1540 [727] 1400 [661] 1260 [595]
DR ➀.17 .15 .14 .17 .15 .14 .17 .15 .14
O
U
T
D
O
O
R
D
R
Y
B
U
L
B
T
E
M
P
E
R
A
T
U
R
E
°F
[°C]
75
[23.9]
Total BTUH [kW]
Sens BTUH [kW]
Power
53.9 [15.80]
32.2 [9.44]
2.9
52.9 [15.50]
30.7 [9.00]
2.9
51.9 [15.21]
29.3 [8.59]
2.9
50.9 [14.92]
37.1 [10.87]
2.9
50.0 [14.65]
35.5 [10.40]
2.9
49.1 [14.39]
33.8 [9.91]
2.9
48.1 [14.10]
39.3 [11.52]
2.9
47.3 [13.86]
37.5 [10.99]
2.9
46.4 [13.60]
35.8 [10.49]
2.9
80
[26.7]
Total BTUH [kW]
Sens BTUH [kW]
Power
52.0 [15.24]
31.3 [9.17]
3.1
51.0 [14.95]
29.9 [8.76]
3.1
50.1 [14.68]
28.5 [8.35]
3.1
49.0 [14.36]
36.3 [10.64]
3.1
48.1 [14.10]
34.7 [10.17]
3.1
47.2 [13.83]
33.0 [9.67]
3.0
46.2 [13.54]
38.4 [11.25]
3.1
45.4 [13.31]
36.7 [10.76]
3.1
44.6 [13.07]
35.0 [10.26]
3.0
85
[29.4]
Total BTUH [kW]
Sens BTUH [kW]
Power
50.3 [14.74]
30.5 [8.94]
3.3
49.4 [14.48]
29.2 [8.56]
3.2
48.5 [14.21]
27.8 [8.15]
3.2
47.3 [13.86]
35.5 [10.40]
3.3
46.5 [13.63]
33.9 [9.94]
3.2
45.6 [13.36]
32.3 [9.47]
3.2
44.6 [13.07]
37.6 [11.02]
3.2
43.8 [12.84]
35.9 [10.52]
3.2
43.0 [12.60]
34.3 [10.05]
3.2
90
[32.2]
Total BTUH [kW]
Sens BTUH [kW]
Power
48.7 [14.27]
29.8 [8.73]
3.4
47.9 [14.04]
28.4 [8.32]
3.4
47.0 [13.77]
27.1 [7.94]
3.4
45.8 [13.42]
34.7 [10.17]
3.4
44.9 [13.16]
33.2 [9.73]
3.4
44.1 [12.92]
31.6 [9.26]
3.4
43.0 [12.60]
36.8 [10.79]
3.4
42.2 [12.37]
35.2 [10.32]
3.4
41.5 [12.16]
33.6 [9.85]
3.4
95
[35]
Total BTUH [kW]
Sens BTUH [kW]
Power
47.2 [13.83]
29.0 [8.50]
3.6
46.4 [13.60]
27.7 [8.12]
3.6
45.5 [13.33]
26.4 [7.74]
3.5
44.2 [12.95]
34.0 [9.96]
3.6
43.4 [12.72]
32.4 [9.50]
3.6
42.7 [12.51]
30.9 [9.06]
3.5
41.5 [12.16]
36.1 [10.58]
3.6
40.7 [11.93]
34.5 [10.11]
3.6
40.0 [11.72]
32.9 [9.64]
3.5
100
[37.8]
Total BTUH [kW]
Sens BTUH [kW]
Power
45.6 [13.36]
28.2 [8.26]
3.8
44.8 [13.13]
26.9 [7.88]
3.7
44.0 [12.90]
25.7 [7.53]
3.7
42.6 [12.48]
33.2 [9.73]
3.8
41.9 [12.28]
31.7 [9.29]
3.7
41.1 [12.05]
30.2 [8.85]
3.7
39.9 [11.69]
35.3 [10.35]
3.7
39.2 [11.49]
33.7 [9.88]
3.7
38.5 [11.28]
32.1 [9.41]
3.7
105
[40.6]
Total BTUH [kW]
Sens BTUH [kW]
Power
43.8 [12.84]
27.4 [8.03]
3.9
43.0 [12.60]
26.1 [7.65]
3.9
42.3 [12.40]
24.9 [7.30]
3.9
40.8 [11.96]
32.3 [9.47]
3.9
40.1 [11.75]
30.9 [9.06]
3.9
39.4 [11.55]
29.4 [8.62]
3.9
38.1 [11.17]
34.4 [10.08]
3.9
37.4 [10.96]
32.9 [9.64]
3.9
36.7 [10.76]
31.4 [9.20]
3.9
110
[43.3]
Total BTUH [kW]
Sens BTUH [kW]
Power
41.7 [12.22]
26.4 [7.74]
4.1
41.0 [12.02]
25.2 [7.39]
4.1
40.2 [11.78]
24.1 [7.06]
4.0
38.8 [11.37]
31.4 [9.20]
4.1
38.1 [11.17]
30.0 [8.79]
4.1
37.4 [10.96]
28.6 [8.38]
4.0
36.0 [10.55]
33.5 [9.82]
4.1
35.4 [10.37]
32.0 [9.38]
4.1
34.7 [10.17]
30.5 [8.94]
4.0
115
[46.1]
Total BTUH [kW]
Sens BTUH [kW]
Power
39.3 [11.52]
25.4 [7.44]
4.3
38.6 [11.31]
24.2 [7.09]
4.2
37.9 [11.11]
23.1 [6.77]
4.2
36.3 [10.64]
30.3 [8.88]
4.3
35.6 [10.43]
29.0 [8.50]
4.2
35.0 [10.26]
27.6 [8.09]
4.2
33.5 [9.82]
32.4 [9.50]
4.3
32.9 [9.64]
31.0 [9.09]
4.2
32.3 [9.47]
29.5 [8.65]
4.2

Air Gross Systems Performance Data
RQPW Series
16
COOLING PERFORMANCE DATA—RQPW-048
5
[-15]
Total BTUH [kW]
Power
20.1 [5.89]
2.6
19.9 [5.83]
2.6
19.8 [5.80]
2.7
18.6 [5.45]
3.0
18.5 [5.42]
3.0
18.3 [5.36]
3.1
17.6 [5.16]
3.5
17.5 [5.13]
3.5
17.3 [5.07]
3.5
IDB
15
[-9.4]
60°F [15.5°C]
Total BTUH [kW]
Power
26.4 [7.74]
2.7
70°F [21.1°C]
26.2 [7.68]
2.8
26.0 [7.62]
2.8
80°F [26.7°C]
24.9 [7.30]
3.1
24.7 [7.24]
3.2
CFM [L/s]
24.6 [7.21]
3.2
23.9 [7.00]
3.6
1760 [831] 1600 [755] 1440 [680] 1760 [831] 1600 [755] 1440 [680] 1760 [831] 1600 [755] 1440 [680]
23.7 [6.95]
3.6
23.6 [6.92]
3.7
O
U
T
D
O
O
R
D
R
Y
B
U
L
B
T
E
M
P
E
R
A
T
U
R
E
°F
[°C]
0
[-17.8]
Total BTUH [kW]
Power
16.9 [4.95]
2.6
16.8 [4.92]
2.6
16.7 [4.89]
2.6
15.4 [4.51]
3.0
15.3 [4.48]
3.0
15.2 [4.45]
3.0
14.4 [4.22]
3.4
14.3 [4.19]
3.5
14.2 [4.16]
3.5
10
[-12.2]
Total BTUH [kW]
Power
23.2 [6.80]
2.7
23.1 [6.77]
2.7
22.9 [6.71]
2.7
21.8 [6.39]
3.1
21.6 [6.33]
3.1
21.5 [6.30]
3.1
20.7 [6.07]
3.5
20.6 [6.04]
3.6
20.5 [6.01]
3.6
25
[-3.9]
Total BTUH [kW]
Power
32.7 [9.58]
2.8
32.5 [9.52]
2.9
32.2 [9.44]
2.9
31.2 [9.14]
3.2
31.0 [9.09]
3.3
30.8 [9.03]
3.3
30.2 [8.85]
3.7
30.0 [8.79]
3.7
29.8 [8.73]
3.8
35
[1.7]
Total BTUH [kW]
Power
39.0 [11.43]
2.9
38.7 [11.34]
3.0
38.5 [11.28]
3.0
37.6 [11.02]
3.3
37.3 [10.93]
3.4
37.0 [10.84]
3.4
36.5 [10.70]
3.8
36.3 [10.64]
3.8
36.0 [10.55]
3.9
20
[-6.7]
Total BTUH [kW]
Power
29.6 [8.67]
2.8
29.3 [8.59]
2.8
29.1 [8.53]
2.8
28.1 [8.24]
3.2
27.9 [8.18]
3.2
27.7 [8.12]
3.2
27.1 [7.94]
3.6
26.9 [7.88]
3.7
26.7 [7.83]
3.7
30
[-1.1]
Total BTUH [kW]
Power
35.9 [10.52]
2.9
35.6 [10.43]
2.9
35.4 [10.37]
2.9
34.4 [10.08]
3.3
34.1 [9.99]
3.3
33.9 [9.94]
3.4
33.4 [9.79]
3.7
33.1 [9.70]
3.8
32.9 [9.64]
3.8
40
[4.4]
Total BTUH [kW]
Power
42.2 [12.37]
3.0
41.9 [12.28]
3.0
41.6 [12.19]
3.1
40.7 [11.93]
3.4
40.4 [11.84]
3.4
40.1 [11.75]
3.5
39.7 [11.63]
3.8
39.4 [11.55]
3.9
39.1 [11.46]
3.9
50
[10]
Total BTUH [kW]
Power
48.5 [14.21]
3.1
48.2 [14.13]
3.1
47.8 [14.01]
3.2
47.0 [13.77]
3.5
46.7 [13.69]
3.5
46.4 [13.60]
3.6
46.0 [13.48]
3.9
45.7 [13.39]
4.0
45.4 [13.31]
4.0
45
[7.2]
Total BTUH [kW]
Power
45.3 [13.28]
3.0
45.0 [13.19]
3.1
44.7 [13.10]
3.1
43.9 [12.87]
3.4
43.6 [12.78]
3.5
43.2 [12.66]
3.5
42.8 [12.54]
3.9
42.5 [12.46]
3.9
42.2 [12.37]
4.0
HEATING PERFORMANCE DATA—RQPW-048
NOTES:
➀When the entering air dry bulb is other than 80°F [27°C], adjust the sensible capacity
from the table by adding [1.10 x CFM x (1 – DR) x (dbE – 80)].
DR —Depression ratio
dbE —Entering air dry bulb
wbE—Entering air wet bulb
Total —Total capacity x 1000 BTUH
Sens —Sensible capacity x 1000 BTUH
Power —KW input
IDB—Indoor air dry bulb [ ] Designates Metric Conversions
ENTERING INDOOR AIR @ 80°F [26.7°C] dbE ➀
wbE 71°F [21.7°C] 67°F [19.4°C] 63°F [17.2°C]
CFM [L/s] 1760 [831] 1600 [755] 1440 [680] 1760 [831] 1600 [755] 1440 [680] 1760 [831] 1600 [755] 1440 [680]
DR ➀.15 .13 .11 .15 .13 .11 .15 .13 .11
O
U
T
D
O
O
R
D
R
Y
B
U
L
B
T
E
M
P
E
R
A
T
U
R
E
°F
[°C]
75
[23.9]
Total BTUH [kW]
Sens BTUH [kW]
Power
60.4 [17.70]
37.4 [10.96]
3.2
59.3 [17.38]
35.7 [10.46]
3.1
58.3 [17.09]
34.1 [9.99]
3.1
57.1 [16.73]
42.7 [12.51]
3.1
56.1 [16.44]
40.8 [11.96]
3.1
55.0 [16.12]
38.9 [11.40]
3.1
54.5 [15.97]
45.0 [13.19]
3.1
53.5 [15.68]
43.0 [12.60]
3.1
52.5 [15.39]
41.0 [12.02]
3.1
80
[26.7]
Total BTUH [kW]
Sens BTUH [kW]
Power
58.8 [17.23]
36.6 [10.73]
3.4
57.8 [16.94]
35.0 [10.26]
3.3
56.7 [16.62]
33.3 [9.76]
3.3
55.5 [16.27]
41.9 [12.28]
3.3
54.5 [15.97]
40.0 [11.72]
3.3
53.5 [15.68]
38.2 [11.20]
3.3
52.9 [15.50]
44.2 [12.95]
3.3
51.9 [15.21]
42.2 [12.37]
3.3
51.0 [14.95]
40.3 [11.81]
3.2
85
[29.4]
Total BTUH [kW]
Sens BTUH [kW]
Power
57.0 [16.71]
35.7 [10.46]
3.5
56.0 [16.41]
34.1 [9.99]
3.5
55.0 [16.12]
32.5 [9.52]
3.5
53.7 [15.74]
41.0 [12.02]
3.5
52.7 [15.44]
39.2 [11.49]
3.5
51.8 [15.18]
37.3 [10.93]
3.5
51.1 [14.98]
43.3 [12.69]
3.5
50.2 [14.71]
41.4 [12.13]
3.5
49.3 [14.45]
39.4 [11.55]
3.4
90
[32.2]
Total BTUH [kW]
Sens BTUH [kW]
Power
55.1 [16.15]
34.8 [10.20]
3.7
54.1 [15.86]
33.2 [9.73]
3.7
53.1 [15.56]
31.7 [9.29]
3.7
51.7 [15.15]
40.1 [11.75]
3.7
50.8 [14.89]
38.3 [11.22]
3.7
49.9 [14.62]
36.5 [10.70]
3.6
49.1 [14.39]
42.4 [12.43]
3.7
48.3 [14.16]
40.5 [11.87]
3.6
47.4 [13.89]
38.6 [11.31]
3.6
95
[35]
Total BTUH [kW]
Sens BTUH [kW]
Power
53.1 [15.56]
33.8 [9.91]
3.9
52.1 [15.27]
32.3 [9.47]
3.9
51.2 [15.01]
30.8 [9.03]
3.9
49.8 [14.59]
39.1 [11.46]
3.9
48.9 [14.33]
37.4 [10.96]
3.9
48.0 [14.07]
35.6 [10.43]
3.8
47.2 [13.83]
41.4 [12.13]
3.9
46.3 [13.57]
39.6 [11.61]
3.8
45.5 [13.33]
37.7 [11.05]
3.8
100
[37.8]
Total BTUH [kW]
Sens BTUH [kW]
Power
51.1 [14.98]
32.9 [9.64]
4.1
50.2 [14.71]
31.4 [9.20]
4.1
49.3 [14.45]
29.9 [8.76]
4.0
47.8 [14.01]
38.2 [11.20]
4.1
46.9 [13.75]
36.5 [10.70]
4.0
46.1 [13.51]
34.8 [10.20]
4.0
45.2 [13.25]
40.5 [11.87]
4.1
44.4 [13.01]
38.7 [11.34]
4.0
43.6 [12.78]
36.9 [10.81]
4.0
105
[40.6]
Total BTUH [kW]
Sens BTUH [kW]
Power
49.3 [14.45]
32.0 [9.38]
4.3
48.4 [14.18]
30.6 [8.97]
4.3
47.5 [13.92]
29.2 [8.56]
4.2
46.0 [13.48]
37.3 [10.93]
4.3
45.1 [13.22]
35.7 [10.46]
4.2
44.3 [12.98]
34.0 [9.96]
4.2
43.4 [12.72]
39.6 [11.61]
4.2
42.6 [12.48]
37.9 [11.11]
4.2
41.8 [12.25]
36.1 [10.58]
4.2
110
[43.3]
Total BTUH [kW]
Sens BTUH [kW]
Power
47.6 [13.95]
31.3 [9.17]
4.5
46.8 [13.72]
29.9 [8.76]
4.4
45.9 [13.45]
28.5 [8.35]
4.4
44.3 [12.98]
36.6 [10.73]
4.5
43.5 [12.75]
34.9 [10.23]
4.4
42.7 [12.51]
33.3 [9.76]
4.4
41.7 [12.22]
38.9 [11.40]
4.4
41.0 [12.02]
37.1 [10.87]
4.4
40.2 [11.78]
35.4 [10.37]
4.4
115
[46.1]
Total BTUH [kW]
Sens BTUH [kW]
Power
46.3 [13.57]
30.7 [9.00]
4.7
45.5 [13.33]
29.3 [8.59]
4.6
44.6 [13.07]
27.9 [8.18]
4.6
43.0 [12.60]
36.0 [10.55]
4.6
42.2 [12.37]
34.4 [10.08]
4.6
41.4 [12.13]
32.8 [9.61]
4.6
40.4 [11.84]
38.3 [11.22]
4.6
39.6 [11.61]
36.6 [10.73]
4.6
38.9 [11.40]
34.8 [10.20]
4.5

Air Indoor Airflow Performance
RQPW Series
17
INDOOR AIRFLOW PERFORMANCE—208 VOLTS
External Static Pressure—Inches W.C. [kPa]
(Side Discharge—Wet Coil)
RPM 878
Nominal
Cooling
Capacity
Tons [kW]
Motor Speed
from Factory
903
Heat Pump
Recommended
Airflow
(Min/Max) CFM
Motor
Speed
953 996 1032 1075 1119
Watts 131 134 142 145 147 154 156
Low HP
(Cool/Heat)
(Tap 2)
CFM [l/s] 847 [400] 818 [386] 788 [372] 765 [361] 737 [348] 695 [328]
0.1 [.02] 0.2 [.05] 0.3 [.07] 0.4 [.10] 0.5 [.12] 0.6 [.15] 0.7 [.17]
659 [311]
RPM 892 818 788 765 737 695 659
2.0
[7.03]
High HP
(Tap 3)
700 CFM/900 CFM
[330/425 L/s]
Cont. Fan
Dedicated
(Tap 1)
CFM [l/s] 821 [387] 799 [377] 775 [366] 742 [350] 706 [333] 681 [321] 641 [303]
Watts 145 147 156 157 164 167 167
Gas Heat
Dedicated
(Tap 5)
CFM [l/s] 821 [387] 799 [377] 775 [366] 742 [350] 706 [333] 681 [321] 641 [303]
RPM 878 903 953 996 1032 1075 1119
Watts 131 134 142 145 147 154 156
Blower Size/
Motor HP [W] &
# of Speeds
9 x 7 Blower
1/3 HP [249 W]
4 Speed
X13 Motor High HP
(Cool/Heat)
(Tap 3)
CFM [l/s] 914 [431] 887 [419] 853 [403] 824 [389] 793 [374] 762 [360] 717 [338]
RPM 934 971 1024 1053 1083 1121 1135
Watts 173 177 185 186 188 192 185
1176
161
0.8 [.20]
581 [274]
581
611 [288]
155
611 [288]
1176
161
602 [284]
1155
164
Gas Heat
(Tap 5)
HP (Cool/Heat) Gas Heat
1024RPM 719
10 x 9 Blower
1/2 HP [373 W]
5 Speed
X13 Motor
749 791 819 876 952 983
Watts 143 145 155 159 169 182 185 192
Low HP
(Cool/Heat)
(Tap 2)
CFM [l/s] 1067 [504] 1034 [488] 992 [468] 957 [452] 912 [430] 820 [387] 778 [367]
RPM 719 749 791 819
Gas Heat
(Tap 5)
876 952 983
729 [344]
1024
2.5
[8.79]
Med HP
(Tap 3)
875 CFM/1125 CFM
[652/839 L/s]
Cont. Fan
Dedicated
(Tap 1)
CFM [l/s] 1067 [504] 1034 [488] 992 [468] 957 [452] 912 [430] 820 [387] 778 [367]
Watts 143 145 155 159 169 182 185
729 [344]
192
892 [421]
1086
256
819 [387]
1053
351
High HP
(Cool/Heat)
(Tap 4)
CFM [l/s] 1252 [591] 1213 [572] 1166 [550] 1137 [537] 1099 [519] 1046 [494] 986 [465]
RPM 796 826 868 893 934 982 1026
Watts 206 210 219 225 234 245 248
Med HP
(Cool/Heat)
(Tap 3)
CFM [l/s] 1165 [550] 1132 [534] 1091 [515] 1051 [496] 1009 [476] 959 [453] 855 [404]
RPM 744 785 833 864 905 951 1020
Watts 167 177 188 191 202 206 217
911 [430]
1038
215
Gas Heat
Dedicated
(Tap 5)
CFM [l/s] 1228 [580] 1187 [560] 1140 [538] 1105 [522] 1062 [501] 1008 [476] 959 [453]
RPM 761 808 841 884 920 960 999
Watts 150 170 180 183 185 190 195
1038RPM 761
10 x 9 Blower
1/2 HP [373 W]
5 Speed
X13 Motor
808 841 884 920 960 999
Watts 150 170 180 183 185 190 195 215
Low HP
(Cool/Heat)
(Tap 2)
CFM [l/s] 1247 [589] 1220 [576] 1178 [556] 1143 [539] 1099 [519] 1064 [502] 998 [471]
RPM 784 819 863 890
Gas Heat
(Tap 5)
932 957 1012
904 [427]
1075
3.0
[10.55]
Med HP
(Tap 3)
1050 CFM/1350 CFM
[782/1007 L/s]
Cont. Fan
Dedicated
(Tap 1)
CFM [l/s] 1228 [580] 1187 [560] 1140 [538] 1105 [522] 1062 [501] 1008 [476] 959 [453]
Watts 200 208 219 224 233 236 246
911 [430]
256
1103 [521]
1089
316
989 [467]
1087
284
High HP
(Cool/Heat)
(Tap 4)
CFM [l/s] 1396 [659] 1357 [640] 1334 [630] 1286 [607] 1253 [591] 1207 [570] 1163 [549]
RPM 864 898 920 942 976 1010 1043
Watts 268 280 288 292 299 304 310
Med HP
(Cool/Heat)
(Tap 3)
CFM [l/s] 1307 [617] 1292 [610] 1238 [584] 1214 [573] 1170 [552] 1135 [536] 1087 [513]
RPM 820 850 889 918 944 981 1028
Watts 233 242 248 255 262 268 277
911 [430]
1038
215
Gas Heat
Dedicated
(Tap 5)
CFM [l/s] 1228 [580] 1187 [560] 1140 [538] 1105 [522] 1062 [501] 1008 [476] 959 [453]
RPM 761 808 841 884 920 960 999
Watts 150 170 180 183 185 190 195
NOTES: Do not connect wiring to unspecified speed taps.
Heat Pump speed must be changed to Low to achieve AHRI performance. [ ] Designates Metric Conversions

Air Indoor Airflow Performance
RQPW Series
18
INDOOR AIRFLOW PERFORMANCE—208 VOLTS (con’t.)
1146
External Static Pressure—Inches W.C. [kPa]
(Side Discharge—Wet Coil)
RPM 923
Blower Size/
Motor HP [W] &
# of Speeds
Nominal
Cooling
Capacity
Tons [kW]
10 x 9 Blower
3/4 HP [559 W]
4 Speed
X13 Motor
Motor Speed
from Factory
946
Heat Pump
Recommended
Airflow
(Min/Max) CFM
Motor
Speed
976 1015 1044 1085 1126
Watts 301 309 316 327 337 348 356 363
Low HP
(Cool/Heat)
(Tap 2)
CFM [l/s] 1455 [687] 1431 [675] 1396 [659] 1360 [642] 1315 [621] 1285 [606]
0.1 [.02] 0.2 [.05] 0.3 [.07] 0.4 [.10] 0.5 [.12] 0.6 [.15] 0.7 [.17]
1241 [586]
RPM 824 856 889 931
Gas Heat
(Tap 5)
HP (Cool/Heat) Gas Heat
968 1009 1041
0.8 [.20]
3.5
[12.31]
High HP
(Tap 3)
1225 CFM/1575 CFM
[913/1174 L/s]
Cont. Fan
Dedicated
(Tap 1)
CFM [l/s] 1454 [686] 1433 [676] 1392 [657] 1354 [639] 1322 [624] 1283 [606] 1238 [584]
Watts 268 280 288 303 311 325 331
1192 [563]
1192 [563]
1146
363
Gas Heat
Dedicated
(Tap 5)
CFM [l/s] 1454 [686] 1433 [676] 1392 [657] 1354 [639] 1322 [624] 1283 [606] 1238 [584]
RPM 923 946 976 1015 1044 1085 1126
Watts 301 309 316 327 337 348 356
High HP
(Cool/Heat)
(Tap 3)
CFM [l/s] 1559 [736] 1530 [722] 1488 [702] 1454 [686] 1417 [669] 1375 [649] 1336 [631]
RPM 870 893 932 968 1007 1036 1072
Watts 321 327 338 351 364 371 381
1146RPM 923
10 x 9 Blower
3/4 HP [559 W]
4 Speed
X13 Motor
946 976 1015 1044 1085 1126
Watts 301 309 316 327 337 348 356 363
Low HP
(Cool/Heat)
(Tap 2)
CFM [l/s] 1675 [791] 1658 [782] 1610 [760] 1580 [746] 1535 [724] 1491 [704] 1422 [671]
RPM 923 944 979 1013
Gas Heat
(Tap 5)
1045 1077 1098
4.0
[14.07]
High HP
(Tap 3)
1350 CFM/1700 CFM
[1007/1268 L/s]
Cont. Fan
Dedicated
(Tap 1)
CFM [l/s] 1454 [686] 1433 [676] 1392 [657] 1354 [639] 1322 [624] 1283 [606] 1238 [584]
Watts 390 401 412 425 433 440 432
1192 [563]
1192 [563]
1146
363
Gas Heat
Dedicated
(Tap 5)
CFM [l/s] 1454 [686] 1433 [676] 1392 [657] 1354 [639] 1322 [624] 1283 [606] 1238 [584]
RPM 923 946 976 1015 1044 1085 1126
Watts 301 309 316 327 337 348 356
High HP
(Cool/Heat)
(Tap 3)
CFM [l/s] 1770 [835] 1751 [826] 1706 [805] 1672 [789] 1624 [766] 1555 [734] 1463 [690]
RPM 966 989 1018 1050 1078 1100 1115
Watts 454 466 473 486 490 481 460
NOTES: Do not connect wiring to unspecified speed taps.
Heat Pump speed must be changed to Low to achieve AHRI performance.
DOWN DISCHARGE PRESSURE DROP (ADD TO EXTERNAL STATIC PRESSURE)
Pressure Drop—Inches W.C. [kPa] .00 .01 [.002] .02 [.005] .03 [.007] .05 [.012] .07 [.017] .07 [.017].05 [.012]
1600 [775]1400 [661]CFM [L/s] 600 [283] 800 [378] 1000 [472] 1200 [566] 1400 [661] 1600 [775]
[ ] Designates Metric Conversions

Air Indoor Airflow Performance
RQPW Series
19
INDOOR AIRFLOW PERFORMANCE—230 VOLTS
1173
External Static Pressure—Inches W.C. [kPa]
(Side Discharge—Wet Coil)
RPM 890
Blower Size/
Motor HP [W] &
# of Speeds
Nominal
Cooling
Capacity
Tons [kW]
9 x 7 Blower
1/3 HP [249 W]
4 Speed
X13 Motor
Motor Speed
from Factory
915
Heat Pump
Recommended
Airflow
(Min/Max) CFM
Motor
Speed
961 1000 1046 1089 1121
Watts 137 139 148 151 160 163 166 167
1032
Low HP
(Cool/Heat)
(Tap 2)
CFM [l/s] 862 [407] 834 [394] 819 [387] 781 [369] 761 [359] 729 [344]
0.1 [.02] 0.2 [.05] 0.3 [.07] 0.4 [.10] 0.5 [.12] 0.6 [.15] 0.7 [.17]
695 [328]
RPM 889 953 974 1018
Gas Heat
(Tap 5)
HP (Cool/Heat) Gas Heat
RPM 715
10 x 9 Blower
1/2 HP [373 W]
5 Speed
X13 Motor
753 787
1065 1101 1133
0.8 [.20]
606 [286]
825 877 946 1005
Watts 144 148 157 169 175 187 198
1156
202
Low HP
(Cool/Heat)
(Tap 2)
CFM [l/s] 1076 [508] 1041 [491] 1017 [480] 970 [458] 928 [438] 852 [402] 785 [370]
2.0
[7.03]
High HP
(Tap 3)
700 CFM/900 CFM
[330/425 L/s]
Cont. Fan
Dedicated
(Tap 1)
CFM [l/s] 829 [391]
RPM 715 753 787 825
Gas Heat
(Tap 5)
877 946
808 [381] 789 [372] 756 [357] 737 [348] 697 [329] 668 [315]
Watts 151 159 162 166 173 176 180
1005
745 [352]
1032
2.5
[8.79]
Med HP
(Tap 3)
615 [290]
165
615 [290]
1173
167
875 CFM/1125 CFM
[652/839 L/s]
Cont. Fan
Dedicated
(Tap 1)
CFM [l/s] 1076 [508] 1041 [491] 1017 [480] 970 [458] 928 [438] 852 [402] 785 [370]
Watts 144 148 157
616 [291]
1157
168
169 175 187
Gas Heat
Dedicated
(Tap 5)
CFM [l/s] 829 [391] 808 [381] 789 [372] 756 [357] 737 [348] 697 [329] 668 [315]
RPM 890 915 961 1000 1046 1089 1121
198
745 [352]
202
934 [441]
1089
270
852 [402]
1059
235
High HP
(Cool/Heat)
(Tap 4)
CFM [l/s]
1271 [600] 1223 [577] 1169 [552] 1137 [537]
1104 [521] 1071 [505] 1015 [479]
RPM
Watts 137 139 148 151 160 163 166
797 836 878 905 939 974 1026
Watts 212 217 227 231 241 247 257
Med HP
(Cool/Heat)
(Tap 3)
CFM [l/s]
1187 [560]
1124 [530] 1096 [517] 1071 [505] 1024 [483] 987 [466] 896 [423]
RPM 762 799 832 859 914 940 1021
Watts 176 182 191 196 209 212 227
1044RPM 771
10 x 9 Blower
1/2 HP [373 W]
5 Speed
X13 Motor
815 848 886 932 965 1004
Watts 155 162
950 [448]
1044
220
Gas Heat
Dedicated
(Tap 5)
CFM [l/s] 1241 [586] 1203 [568] 1155 [545] 1119 [528] 1082 [511] 1032 [487] 994 [469]
RPM 771 815 848 886 932 965 1004
Watts 155 162 170 182 193 200 210
170 182 193 200 210 220
Low HP
(Cool/Heat)
(Tap 2)
CFM [l/s] 1258 [594] 1215 [573] 1200 [566] 1160 [547] 1130 [533] 1082 [511] 1026 [484]
RPM 802 829 861 894
Gas Heat
(Tap 5)
933 971 1020
954 [450]
1077
3.0
[10.55]
Med HP
(Tap 3)
1050 CFM/1350 CFM
[782/1007 L/s]
Cont. Fan
Dedicated
(Tap 1)
CFM [l/s] 1241 [586] 1203 [568] 1155 [545] 1119 [528] 1082 [511] 1032 [487] 994 [469]
Watts 210 217 225 230 239 245 259
950 [448]
268
1168 [551]
1091
337
1071 [505]
1071
299
High HP
(Cool/Heat)
(Tap 4)
CFM [l/s] 1416 [668] 1379 [651] 1342 [633] 1292 [610] 1275 [602] 1240 [585] 1200 [566]
RPM 874 898 933 952 993 1011 1060
Watts 285 290 299 304 314 322 328
High HP
(Cool/Heat)
(Tap 3)
Med HP
(Cool/Heat)
(Tap 3)
CFM [l/s] 1336 [631] 1298 [613] 1259 [594] 1229 [580] 1198 [565] 1160 [547] 1116 [527]
RPM 821 867 903 920 957 993 1038
Watts 239 249 259 262 275 279 290
950 [448]
1044
220
Gas Heat
Dedicated
(Tap 5)
CFM [l/s] 1241 [586] 1203 [568] 1155 [545] 1119 [528] 1082 [511] 1032 [487] 994 [469]
RPM 771 815 848 886 932 965 1004
Watts 155 162 170 182 193 200 210
CFM [l/s] 918 [433] 888 [419] 874 [412] 838 [395] 819 [387] 781 [369] 711 [336]
RPM 953 988 1032 1060 1091 1126 1146
Watts 181 184 194 198 200 204 189
NOTES: Italic type indicates airflow outside of manufacturers recommendation. Do not connect wiring to unspecified speed taps.
Heat Pump speed must be changed to Low to achieve AHRI performance. [ ] Designates Metric Conversions

Air Indoor Airflow Performance
RQPW Series
20
INDOOR AIRFLOW PERFORMANCE—230 VOLTS (con’t.)
1158
External Static Pressure—Inches W.C. [kPa]
(Side Discharge—Wet Coil)
RPM 931
Blower Size/
Motor HP [W] &
# of Speeds
Nominal
Cooling
Capacity
Tons [kW]
10 x 9 Blower
3/4 HP [559 W]
4 Speed
X13 Motor
Motor Speed
from Factory
958
Heat Pump
Recommended
Airflow
(Min/Max) CFM
Motor
Speed
993 1031 1058 1097 1133
Watts 308 319 331 339 349 362 373 381
1158
Low HP
(Cool/Heat)
(Tap 2)
CFM [l/s] 1467 [692] 1439 [679] 1408 [665] 1360 [642] 1331 [628] 1287 [607]
0.1 [.02] 0.2 [.05] 0.3 [.07] 0.4 [.10] 0.5 [.12] 0.6 [.15] 0.7 [.17]
1259 [594]
RPM 831 854 894 932
Gas Heat
(Tap 5)
HP (Cool/Heat) Gas Heat
RPM 931
10 x 9 Blower
3/4 HP [559 W]
4 Speed
X13 Motor
958 993
972 1005 1042
0.8 [.20]
1031 1058 1097 1133
Watts 308 319 331 339 349 362 373 381
Low HP
(Cool/Heat)
(Tap 2)
CFM [l/s] 1692 [799] 1661 [784] 1633 [771] 1589 [750] 1560 [736] 1512 [714] 1442 [681]
3.5
[12.31]
High HP
(Tap 3)
1225 CFM/1575 CFM
[913/1174 L/s]
Cont. Fan
Dedicated
(Tap 1)
CFM [l/s] 1459 [689]
RPM 931 950 982 1018
Gas Heat
(Tap 5)
1054 1082
1438 [679] 1409 [665] 1371 [647] 1337 [631] 1296 [612] 1258 [594]
Watts 276 282 297 307 319 326 341
1103
4.0
[14.07]
High HP
(Tap 3)
1223 [577]
1223 [577]
1158
381
1350 CFM/1700 CFM
[1007/1268 L/s]
Cont. Fan
Dedicated
(Tap 1)
CFM [l/s] 1459 [689] 1438 [679] 1409 [665] 1371 [647] 1337 [631] 1296 [612] 1258 [594]
Watts 404 409 424 434 450 453
Gas Heat
Dedicated
(Tap 5)
CFM [l/s] 1459 [689] 1438 [679] 1409 [665] 1371 [647] 1337 [631] 1296 [612] 1258 [594]
RPM 931 958 993 1031 1058 1097 1133
443
1223 [577]
1223 [577]
1158
381
Gas Heat
Dedicated
(Tap 5)
CFM [l/s] 1459 [689] 1438 [679] 1409 [665] 1371 [647] 1337 [631] 1296 [612] 1258 [594]
RPM
Watts 308 319 331 339 349 362 373
931 958 993 1031 1058 1097 1133
Watts 308 319 331 339 349 362 373
High HP
(Cool/Heat)
(Tap 3)
CFM [l/s]
1748 [825] 1718 [811]
1686 [796] 1647 [777] 1616 [763] 1543 [728] 1472 [695]
RPM 955 978 1010 1043 1073 1096 1111
Watts 440 446 462 475 484 473 459
High HP
(Cool/Heat)
(Tap 3)
CFM [l/s] 1550 [732] 1520 [717] 1486 [701] 1449 [684] 1407 [664] 1382 [652] 1337 [631]
RPM 867 890 930 974 1003 1039 1073
Watts 317 323 339 355 362 377 385
NOTES: Italic type indicates airflow outside of manufacturers recommendation. Do not connect wiring to unspecified speed taps.
Heat Pump speed must be changed to Low to achieve AHRI performance.
DOWN DISCHARGE PRESSURE DROP (ADD TO EXTERNAL STATIC PRESSURE)
Pressure Drop—Inches W.C. [kPa] .00 .01 [.002] .02 [.005] .03 [.007] .05 [.012] .07 [.017] .07 [.017].05 [.012]
1600 [775]1400 [661]CFM [L/s] 600 [283] 800 [378] 1000 [472] 1200 [566] 1400 [661] 1600 [775]
[ ] Designates Metric Conversions

Air Electrical Data
RQPW Series
21
1. Horsepower Per Compressor.
2. Amp Draw Per Motor. Multiply Value By Number of Motors to Determine Total Amps.
Minimum Circuit Ampacity
Minimum Overcurrent
Protection Device Size
21/21
25/25
Maximum Overcurrent
Protection Device Size 30/30
Compressor Motor
No. 1
Volts 208/230
Phase 1
HP 3450
RPM 2
Amps (RLA) 12.8/12.8
Amps (LRA)
Unit Information
Unit Operating
Voltage Range
58.3/58.3
187-253
Condenser Motor
No. 1
Volts 208/230
Phase 1
HP 1/3
Amps (FLA) 1.3/1.3
Amps (LRA) 2.2/2.2
Evaporator Fan
No. 1
Volts 208/230
Phase 1
HP 1/3
Amps (FLA) 2.8/2.8
Amps (LRA) 0/0 0/0
2.8/2.8
1/3
1
208/230
1
2.2/2.2
1.3/1.3
1/3
1
208/230
1
58.3/58.3
12.8/12.8
2
3450
1
208/230
1
30/30
25/25
21/21
187-253
0/0
4.1/4.1
1/2
1
208/230
1
2.2/2.2
1.3/1.3
1/3
1
208/230
1
73/73
14.1/14.1
2 1/2
3450
1
208/230
1
35/35
25/25
24/24
187-253
ELECTRICAL DATA – RQPW- SERIES
0/0
6/6
3/4
1
208/230
1
3.9/3.9
2/2
1/3
1
208/230
1
109/109
19.9/19.9
3 1/2
3450
1
208/230
1
50/50
35/35
33/33
187-253
0/0
4.1/4.1
1/2
1
208/230
1
2.2/2.2
1.3/1.3
1/3
1
208/230
1
88/88
10.4/10.4
3
3450
3
200/230
1
25/25
20/20
19/19
187-253
B024JK B025JK B030JK B042JKB036CK B036JK
0/0
4.1/4.1
1/2
1
208/230
1
2.2/2.2
1.3/1.3
1/3
1
208/230
1
79/79
16.7/16.7
3
3450
1
208/230
1
40/40
30/30
27/27
187-253
0/0
6/6
3/4
1
208/230
1
3.9/3.9
2/2
1/3
1
208/230
1
117/117
23.8/23.8
4
3450
1
208/230
1
50/50
40/40
37/37
B048JK
187-253
Volts 208/230 208/230 208/230 208/230208/230 208/230208/230

Air Dimensional Data
RQPW Series
22
FLUE
EXHAUST
BLOWER/
EVAPORATOR
ACCESS PANEL
SIDE RETURN
DUCT OPENING
SIDE SUPPLY
DUCT OPENING
21% ± 2%
30% ± 2%
29% ± 2%
20% ± 2%
CORNER WEIGHTS
% OF TOTAL
UNIT WEIGHT
FIELD CONTROL
WIRE ENTRANCE
FLUE EXHAUST HOOD
COMBUSTION AIR
INLET HOOD
FIELD POWER
WIRE ENTRANCE
LIQUID PRESSURE
SERVICE PORT
SUCTION PRESSURE
SERVICE PORT
THREADED PVC
CONDENSATE DRAIN
CONNECTION (3/4 N.P.T.)
OUTDOOR COIL
PROTECTIVE
GRILLE
OUTDOOR FAN
GRILLE &
COMPRESSOR
ACCESS
[ ] Designates Metric Conversions
OUTDOOR FAN
GRILLE &
COMPRESSOR ACCESS
5013/16"
[1290 mm]
479/16"
[1208 mm]
BOTTOM
RETURN
DUCT
OPENING
451/16"
[1145 mm]
INSIDE 13/16"
[30 mm]
TYP.
11/2"
[38 mm]
TYP.
BOTTOM
SUPPLY
DUCT
OPENING
497/16"
[1256 mm]
INSIDE
313/16"
[97 mm]
33/16"
[97 mm]
191/2"
[495 mm]
153/8"
[391 mm]
141/4"
[362 mm]
TYP.
49/10"
[125 mm]
TOP VIEW BOTTOM VIEW

Air Dimensional Data
RQPW Series
23
527/16"
[1332 mm]
BLOWER/
EVAPORATOR
ACCESS PANEL
FILTER ACCESS PANEL (FOR UNIT
MOUNTED FILTER ACCESSORY)
OUTDOOR
COIL PROTECTIV
E
GRILLE
1015/16"
[278 mm]
FLUE
EXHAUST
HOOD
GAS SUPPLY
ENTRANCE
111/16"
[42.9 mm]
SIDE VIEW SIDE VIEW
FRONT VIEW BACK VIEW
SHOWN WITH DUCT COVERS REMOVED.
SIDE RETURN
DUCT OPENING
191/8"
[486 mm]
47/16"
[113 mm]
3515/16"
[897 mm]
47/8"
[124 mm]
471/2"
[1207 mm]
2211/16"
[576 mm]
75/16"
[186 mm]
227/8"
[581 mm]
1315/16"
[338 mm]
207/8"
[530 mm]
SIDE SUPPLY
DUCT OPENING
1314"
[337 mm]
81/2"
[216 mm]
TYP.
143/16"
[360 mm]
TYP.
39/16"
[90 mm]
15"
[381 mm]
133/4"
[349 mm]
TYP.
57/16"
[138 mm]
21/2"
[64 mm]
21/2" [64 mm]
IMPORTANT:
INSTALLATION MUST NOT
INTERFERE WITH DRAINAGE
OPENINGS IN BOTTOM OF UNIT
UNDER OUTDOOR COIL.
Model # “A” Height
B024, B025 3515/16"
B030, B036
B042, B048 41"
[ ] Designates Metric Conversions

Air Typical Installations
RQPW Series
24

Air Accessories
RQPW Series
25
ACCESSORY EQUIPMENT
Accessory
Description
Model
Application
Accessory
Model No.
Roofcurbs RQPW- RXQG-AAA14 (14" [356 mm] Height)
RXQG-AAA24 (24" [610 mm] Height)
Thermostat with Outdoor Sensor RQPW- RHC-TST402DFMS
Economizers (Downflow Only) RQPW- AXRE-CAA30 (3 Position)
AXRD-CAM10 (Fully Modulating)
Fresh Air Damper RQPW- AXRF-FAB1 (Motorized-35%)
AXRF-FAA1 (Fixed-35%)
Rectangular to Round Transition (Downflow) RQPW- RXMC-CA02 (16" [406 mm] Ducts)
RXMC-CA03 (18" [457 mm] Ducts)
Filter Kit RQPW- RXRY-01
Low Ambient Control RQPW- RXPZ-G01
High Pressure Control RQPW- RXAB-D01
Sideflow Rectangular to Round Transition RQPW- AXMC-BA01
LP Conversion Kits RQPW- RXGJ-EP84W (White-Rodgers Gas Valve)
RXGJ-EP85H (Honeywell Gas Valve)
Canadian High Altitude Kit (for Natural Gas only*) RQPW- RXRX-AH01
Lift Kit RQPW- RXML-A01
Supply & Return Diffusers RQPW- RXRN-D15
Economizers (Sideflow Only) RQPW- AXRE-CCA30 (3 Position)
AXRD-CCM10 (Fully Modulating)
*If a particular unit is to be converted to operate on LP (propane) for elevations above 2000 ft. [609.6 m] in Canada, the existing Natural Gas to LP Conversion Kits for the subject
models already contain the necessary orifices and instructions to de-rate the input for 2000-4500 ft. [609.6-1371.6 m] Canadian applications.
[ ] Designates Metric Conversions
This thermostat is pre-configured ready to operate the Package
Dual Fuel Unit right out of the box with no programming required.
This thermostat also contains a outdoor air sensor that allows for
optimal efficiency and comfort from the Package Dual Fuel Unit.
DUAL FUEL THERMOSTAT

Air Accessories
RQPW Series
26
SUPPLY AIR/PERFORMANCE
NOTE: The location of the combination supply and return diffuser should
not exceed 10 feet [3.05 m] above the floor level for units @ 1000 CFM
[472 L/s] or less and 12 [3.66 m] to 14 feet [4.27 m] above the floor level
for units with CFM greater than 1000 [472 L/s]. If the diffuser is installed
with a greater distance than recommended above, the supply air may
become stratified above the required comfort area causing uncomforta -
ble conditions.
Accessory Approximate CFM [L/s]-Supply Air
.12 [.030].07 [.017] .10 [.024]Plenum & Supply/Return Duct
1575 [743] 1800 [850]1300 [614]
.16 [.040].09 [.022] .13 [.032]Diffuser
.11 [.027].06 [.015] .09 [.022]Economizer .17 [.042]
.24 [.060]
.17 [.042]
2200 [1038]
Diffuser Airflow CFM [L/s] Range of Throw Ft. [m]
14 [4.27]-16 [4.88]800 [378]-1200 [566]
18 [5.49]-28 [8.53]1600 [755]-2000 [944]
AIRFLOW/PRESSURE DROP
INFORMATION (INCHES W.C. [kPa])
COMMON SUPPLY/RETURN
CONCENTRIC AIR DIFFUSER
Designed to convert a side by side or an over and under arrange-
ment into a concentric distribution of air. The diffuser is flush
mounted, completely insulated, assembled, and internally baf-
fled to provide four way supply air distribution with a center
return. To make the assembly complete and ready to fit into a 2'
[0.61 m] x 4' [1.22 m] suspended ceiling grid, the diffuser
includes adjust able supply louvers, hanging rings, anti-sweat
gasket, and round flanges for use with flexible ducts.
Model No.
RXRN-
Diameter
Inches [mm]
16 [406] 90 [40.82]
Shipping Wt.
Lbs. [kg]
Dimension A
Inches [mm]
201/2[521]
BD15
SUPPLY/RETURN DIFFUSER
[ ] Designates Metric Conversions

Air Accessories
RQPW Series
27
DUCT ADAPTERS
RECTANGULAR TO ROUND
TRANSITIONS (DOWNFLOW)
RXMC-CA02
DUCT ADAPTERS
RECTANGULAR TO ROUND
TRANSITIONS (DOWNFLOW)
[ ] Designates Metric Conversions

Air Accessories
RQPW Series
28
FRESH AIR DAMPER FOR USE ON
RQPW- SERIES
AXRF-FAA1 (Fixed - 0-35%)
The 0-35% manual outside Air Damper is designed to replace
the unit return air duct cover. No drilling or damper assembly is
required. The amount of outside air (0-35%) is controlled by sim-
ply adjusting the side damper.
AXRF-FAB1 (Motorized - 0-35%)
The 0-35% motorized outside Air Damper is designed to replace
the unit return air duct cover. No drilling or damper assembly is
required. The control motor opens the adjustable slide damper
when the unit blower motor is energized.
RXMC-CA03
[ ] Designates Metric Conversions
DUCT ADAPTERS
RECTANGULAR TO ROUND
TRANSITIONS (DOWNFLOW)
DUCT ADAPTERS
RECTANGULAR TO ROUND
TRANSITIONS (DOWNFLOW) (con’t.)

Air Accessories
RQPW Series
29
AXRE-CAA30 (3 Position)
Provided with enthalpy control, and
mixed air sensor. Settings include
fully open, fully closed and adjust -
able mid point.
AXRD-CAM10 (Fully Modulating)
Provided with enthalpy control, mixed
air sensor and minimum position
potentiometer for proportioning (mod-
ulat ing) the amount of fresh air.
NOTE: See economizer installation
instructions for correct filter access door.
ECONOMIZERS
AXRE-CAA30 (3 Position) and
AXRD-CAM10 (Fully Modulating) for
RQPW- SERIES
ECONOMIZERS
AXRD-CCM10 (Fully Modulating) and
RXRE-CCA30 (3 Position)
Horizontal Application
AXRD-CCM10 (Fully Modulating)
Provided with enthalpy control, mixed
air sensor and minimum position poten-
tiometer for proportioning (mod ulat ing)
the amount of fresh air.
AXRE-CCA30 (3-Position)
Has outdoor air sensor, minimum position
potentiometer and mixed air sensor to
provide three damper positions.
[ ] Designates Metric Conversions

Air Accessories
RQPW Series
30
Airflow Pressure Drop, Inches W.C. [kPa]
1" Filter 2" FilterCFM [L/s]
500 [236] .02 [.0050] .03 [.0075]
600 [283] .02 [.0050] .03 [.0075]
700 [330] .03 [.0075] .04 [.0010]
800 [378] .04 [.0010] .05 [.0124]
900 [425] .05 [.0124] .06 [.0149]
1000 [472] .07 [.0174] .08 [.0199]
1100 [519] .08 [.0199] .09 [.0224]
1200 [566] .10 [.0249] .12 [.0299]
1300 [614] .13 [.0324] .15 [.0373]
1400 [661] .16 [.0398] .19 [.0473]
1500 [708] .19 [.0473] .21 [.0523]
1600 [755] .20 [.0498] .23 [.0572]
1700 [802] .21 [.0523] .24 [.0598]
1800 [850] .22 [.0548] .25 [.0623]
1900 [897] .24 [.0598] .27 [.0672]
2000 [944] .26 [.0647] .29 [.0722]
[ ] Designates Metric Conversions
FILTER KIT INSTALLATION
RXRY-01
For use in either
vertical or horizontal
discharge.

Air Accessories
RQPW Series
31
DUCT ADAPTER SIDEFLOW
SQUARE TO ROUND TRANSITION
AXMC-BA01
Adapts the side rectangular supply and return openings to 14"
[356 mm] diameter round openings. Adapters provided with
same finish as unit and also provided with thermal insulation.
[ ] Designates Metric Conversions

Air Accessories
RQPW Series
32
RXQG-AAA14
(14" [356 mm] High)
Roofcurb (Sloped)
RXQG-AAA14 & RXQG-AAA24
for RQPW- SERIES
Dual fuel models must
use sloped curbs.
Hinged corners make
for fast, easy set-up.
RXQG-AAA24
(24" [610 mm] High)
[ ] Designates Metric Conversions
PACKAGE DUAL FUEL
ROOFCURB INSTALLATION (SLOPED)
OUTDOOR FAN GRILLE
AND COMPRESSOR ACCESS
CONTROL
ACCESS PANEL
LIQUID PRESSURE
SERVICE PORT
SUCTION PRESSURE
SERVICE PORT
IMPORTANT: UNIT MUST BE LEVEL TO
PREVENT WATER MIGRATION
OUTDOOR COIL
PROTECTIVE GRILLE
THREADED PVC CONDENSATE
DRAIN CONNECTION (3/4" [19.05 mm] N.P.T.)
5"
[127 mm]
207/8"
[530.2 mm]

Air Accessories
RQPW Series
33
PACKAGE DUAL FUEL
PACKAGE ROOFCURB INSTALLATION
(Full Perimeter)
ROOFCURB ADAPTERS
Fabricated from galvanized steel to adapt the New cabinet to
the old style curb. All are furnished with a New gasket.
OLD MODEL OLD CURB MODEL NEW MODEL TO OLD MODEL
ROOFCURB ADAPTER
NEW MODEL PACKAGE
ONLY 1 CABINET SIZE—
ALL MODELS
RQPW-
SMALL CABINET
20 SERIES
RXPX-BACCA20
RXPX-BACCA21
RXPX-BCCCA22
RXPX-BCCCA23
(11/2-2 TON) [5.28-7.03 kW]
RSNC-, RSND-, RSNE-
RRGE-, RRGF-, RRGG-, RSNY
RPNC-, RPND-
RXPA-CA21 (1)
MEDIUM CABINET
21 SERIES
(21/2-3 TON) [8.79-10.55 kW]
RSNC-, RSND-, RSNE-
RRGE-, RRGF-, RRGG-, RSNY
RPNC-, RPND-
RXPA-CA22 (1)
LARGE CABINET
22 SERIES
(3-31/2TON) [10.55-12.31 kW]
RRGE-, RRGF-, RRGG-, RSNY
EXTRA LARGE CABINET
23 SERIES RXPA-CA23 (1)
(31/2-5 TON) [12.31-17.6 kW]
RSNC-, RSND-, RSNE-
RRGE-, RRGF-, RRGG-, RSNY
(4-5 TON) [14.07-17.58 kW]
RXPA-CA20 (1)
RPNC-, RPND-
(1) SLOPE TYPE
[ ] Designates Metric Conversions

Air Accessories
RQPW Series
34
LIFT KIT—MODEL NO. RXML-A01
The lift kit is intended for temporary installation while the unit is
being lifted into position. Kit includes 4 lift brackets.

Air Wiring Diagrams
RQPW Series
35

Air Wiring Diagrams
RQPW Series
36

Air Limited Warranty
RQPW Series
37
GENERAL TERMS OF LIMITED WARRANTY*
BEFORE PURCHASING THIS APPLIANCE, READ IMPORTANT ENERGY COST AND EFFICIENCY INFORMATION AVAILABLE FROM YOUR
RETAILER.
Rheem will furnish a replacement for any part of this product
which fails in normal use and service within the applicable
periods stated, in accordance with the terms of the limited
warranty.
*For complete details of the Limited and Conditional Warranties, including
applicable terms and conditions, contact your local contractor or the
Manufacturer for a copy of the product warranty certificate.
Conditional Parts (Registration Required)
1 Phase, Residential Applications ..................Ten (10) Years
Compressor
1 Phase, Residential Applications...................Ten (10) Years
Stainless Steel Heat Exchanger
1 Phase, Residential Application .................Limited Lifetime

Air Notes
RQPW Series
38

Air Notes
RQPW Series
39

The new degree of comfort.
™
PRINTED IN U.S.A 12/14 QG FORM NO. D11-002 REV. 2