Rheem Prestige Series Up To 96 Afue Modulating Ecm Motor Specification Sheet
2015-04-02
: Rheem Rheem-Prestige-Series-Up-To-96-Afue-Modulating-Ecm-Motor-Specification-Sheet-683745 rheem-prestige-series-up-to-96-afue-modulating-ecm-motor-specification-sheet-683745 rheem pdf
Open the PDF directly: View PDF
.
Page Count: 12

Rheem Prestige Series™Modulating
Upflow Gas Furnace equipped with
the Comfort Control2System™
FORM NO. G11-522 REV. 1
Air Gas Furnaces
RGFG Series
RGFG- Series
95% A.F.U.E. or Above
Input Rates 60 – 120 kBTU
With Contour Comfort Control®
✝A.F.U.E. (Annual Fuel Utilization Efficiency) calculated in accordance with
Department of Energy test procedures.
• The Rheem Prestige Series™ 90 Plus High Efficiency line of
upflow gas furnaces are designed for utility rooms, closets, or
alcoves. Because of the low-profile 34 inch height, the
RGFG- model can be used vertically to satisfy most
applications that traditionally call for a horizontal furnace.
The design is certified by CSA.
• The Comfort Control2System™ provides 28 on-board diag-
nostic codes and fault history codes by detecting system and
electrical problems. “Call for Service” alert notification is sent
to the thermostat to alert the homeowner of required service.
• Serial Communication Enhanced: when installed with a Serial
Com muni cat ing Condensing Unit and user interface control
(RHC-TST550CMMS) 500 Series thermostat this unit offers 4
or 2 wire installation, auto-configuration, and diagnostic mes-
saging with full communicating capability.
• Modulating Function: when used with a modulating or com-
municating thermostat, modulation rate between 40% and
100% of total capacity.
• Two-stage Function: when used with a two-stage thermostat,
furnace operates at 40% on first stage, and stages up to
65%, then 100% for second stage.
• Multistage Function: when used with a single-stage thermo-
stat, furnace functions as a three stage furnace operating at
40%, 65% and 100% of total capacity.
• Primary heat exchanger is constructed of all aluminized steel
for maximum corrosion resistance and thermal fatigue reliability.
• Reduced firing rates, electrically efficient ECM 3.0 motor, and
solid doors provide the ultimate in quiet operation.
• Low speed constant fan.
• Constant temperature rise for superior comfort.
• Seven segment LED for system diagnostics.
• Diagnostic history for troubleshooting.
• Variable speed induced draft motor.
• Hot surface ignition with remote sense.
• Optional indoor or outdoor combustion air.
• A variety of cooling coils and plenums designed to use with
the Prestige Series™ 90 Plus gas furnaces are available as
optional accessories.

Air
2
Table of Contents
RGFG Series
TABLE OF CONTENTS
Standard & Optional Equipment ......................................................................3
Model Features ..............................................................................................4
General Data & Model Number Identification ....................................................5
Dimensional Data............................................................................................6
Blower Performance Data ................................................................................7
Accessories....................................................................................................8
Limited Warranty ............................................................................................9

3
Air Standard & Optional Equipment
RGFG Series
WARNING
THIS FURNACE IS NOT APPROVED
OR RECOMMENDED
FOR USE IN MOBILE HOMES
PRIMARY
AND SECONDARY
HEAT EXCHANGER
IN-SHOT BURNERS
PRESSURE
SWITCHES
BLOWER ASSEMBLY WITH
ECM MOTOR DRAFT INDUCER
INTEGRATED
FURNACE CONTROL GAS VALVE
REMOTE SENSOR
OPTIONAL EQUIPMENT
Side and bottom filter racks; return air cabinet for all sizes.
NOTE: Furnace is not listed for use with fuels other than natural
or L.P. (propane) gas.
All models can be converted by a qualified distributor or local
service dealer to use L.P. (propane) gas without changing
burners. Factory approved kits must be used to convert from
natural to L.P. (propane) gas and may be ordered as optional
accessories from a parts distributor.
For L.P. (propane) operation, refer to Conversion Kit Index Form.
Fossil Fuel Kits for use with Heat Pumps.
Communicating Thermostat System
STANDARD EQUIPMENT
Completely assembled and wired; heat exchanger; primary:
aluminized steel, secondary: 29-4C stainless steel; induced
draft; pressure switches; redundant modulating main gas
control; blower compartment door safety switch; solid state
time on/off blower control; limit controls; manual shut-off
valve; 100% safety lock out; cool fan off delay; one hour
automatic retry; power and self-test diagnostics; flame sense
current diagnostics; electronic air cleaner connections;
humidifier connections; humidifier on/off delay; dehumidifier
connection; low speed continuous fan option; transformer;
direct drive, ECM variable speed blower motor. (Please note: a
thermostat is not included as standard equipment. See
“Accessories”)
INDUCER CONTROL MODULE
HOT SURFACE IGNITOR

Air Model Features
RGFG Series
4
• The Rheem Dual 7-Segment LED Display easily shows
system operating status codes and diagnostic codes.
• The Status Indication
System Diagnostics feature
thermostat communication
capability and built-in diag-
nostics. The thermostat
communication capability
and alerts the homeowner to
any necessary service
requirements. Faster, more
accurate service is provided
by the built-in diagnostics, by providing the HVAC profes-
sional with dependable information.
• The fault recall feature will allow for the last six fault-
codes to be displayed, and will retain these codes even if
power failure occurs.
• In order to save time and money, replacement automotive
style fuses can be utilized instead of replacing the entire
control board.
The
Comfort Control
2
System
™
Features:
IMPORTANT! BEFORE PURCHASING THIS APPLIANCE, READ IMPORTANT ENERGY COST AND EFFICIENCY INFORMATION
AVAILABLE FROM YOUR RETAILER.
Features of RGFG Series:
• Serial Communication Enhanced: when installed with a Serial
Com muni cat ing Condensing Unit and user interface control
(RHC-TST550CMMS) 500 Series thermostat this unit offers 4
or 2 wire installation, auto-configuration, and diagnostic mes-
saging with full communicating capability.
• Modulating Function: when used with a modulating or com-
municating thermostat, modulation rate between 40% and
100% of total capacity.
• Two-stage Function: when used with a two-stage thermostat,
furnace operates at 40% on first stage, and stages up to
65%, then 100% for second stage.
• Multistage Function: when used with a single-stage thermo-
stat, furnace functions as a three stage furnace operating at
40%, 65% and 100% of total capacity.
• Heat exchanger is constructed of all aluminized steel for
maximum corrosion resistance and thermal fatigue reliability.
• Reduced firing rates, electrically efficient ECM 3.0 motor, and
solid doors provide the ultimate in quiet operation.
• Low speed constant fan.
• Constant temperature rise for superior comfort.
• Seven segment LED for system diagnostics.
• Diagnostic history for troubleshooting.
• Variable speed induced draft motor.
• Hot surface ignition with remote sense.
• Optional indoor or outdoor combustion air.
• A variety of cooling coils and plenums designed to use with
the Prestige Series™ 90 Plus gas furnaces are available as
optional accessories.

Air General Data & Model Number Identification
RGFG Series
MODEL NUMBERS RGFG-06EMCK RGFG-09EZCM RGFG-10EZCM RGFG-12ERCM
INPUT–MAXIMUM (BTU/HR) [kW] 60,000 [17.58] 90,000 [26.38] 105,000 [30.77] 120,000 [35.17]
HEATING CAPACITY–MAXIMUM [kW] 55,800 [16.35] 86,000 [25.20] 100,000 [29.31] 115,000 [33.70]
INPUT–MINIMUM (BTU/HR) [kW] 24,000 [7.03] 36,000 [10.55] 42,000 [12.31] 48,000 [14.07]
HEATING CAPACITY–MINIMUM [kW] 22,560 [6.61] 33,840 [9.92] 39,000 [11.57] 45,120 [13.22]
HEATING EXT. STATIC PRESSURE [kPa] 0.12 [.029] 0.15 [.037] 0.20 [.049] 0.20 [.049]
BLOWER (D X W IN.) [mm] 11 x 7 [279 x 178] 12 x 11 [305 x 279] 12 x 11 [305 x 279] 11 x 10 [279 x 254]
ECM MOTOR HP [W] 1/2 [373] 1 [746] 1 [746] 1 [746]
UNIT AMPS 8.7 12.0 12.0 12.0
HEATING CFM–MAXIMUM [L/s] 795 [375] 1195 [564] 1395 [658] 1595 [753]
HEATING CFM–MINIMUM [L/s] 320 [151] 515 [243] 600 [283] 685 [323]
COOLING CFM–RANGE [L/s] 600-1200 [283-566] 1200-2000 [566-944] 1200-2000 [566-944] 1200-2000 [566-944]
MAXIMUM EXT. STATIC PRESSURE [kPa] 0.80 [0.20] 0.80 [0.20] 0.80 [0.20] 0.80 [0.20]
TEMPERATURE RISE RANGE °F [°C] 40-70 [22.2-38.9] 40-70 [22.2-38.9] 40-70 [22.2-38.9] 40-70 [22.2-38.9]
RETURN AIR CABINETS–RXGR- C17B C21B C21B C24B
FILTER SIZE (IN.) [mm] BOTTOM 153/4x 25 [400 x 635] 191/4x 25 [489 x 635] 191/4x 25 [489 x 635] 223/4x 25 [578 x 635]
MAX OUTLET AIR TEMPERATURE °F [°C] 170 [76.7] 180 [82.2] 180 [82.2] 180 [82.2]
APPROX. SHIPPING WEIGHT (LBS.) [kg] 127 [57.6] 158 [71.7] 162 [73.5] 170 [77.1]
AFUE 96.0% 95.1% 95.3% 95.6%
RGFG-07EMCK
95.3%
75,000 [21.98]
72,000 [21.10]
30,000 [8.79]
28,200 [8.26]
0.12 [.029]
11 x 7 [279 x 178]
1/2 [373]
8.7
995 [470]
430 [203]
600-1200 [283-566]
0.80 [0.20]
40-70 [22.2-38.9]
C17B
153/4x 25 [400 x 635]
180 [82.2]
133 [60.3]
15MAXIMUM OVERCURRENT PROTECTION 15 15 15 15
153/4x 25 [400 x 635]FILTER SIZE (IN.) [mm] SIDE 153/4x 25 [400 x 635] 153/4x 25 [400 x 635] 153/4x 25 [400 x 635] 153/4x 25 [400 x 635]
RG F G 07E M C K S
Rheem Gas
Furnace
Modulating
Prestige
Series
™
90 Plus
Gas Furnace
Design
Series
Communicating
Heating Input
Designation
Blower Size
M= 11 x 7
[279 x 178 mm]
R = 11 x 10
[279 x 254 mm]
Z = 12 x 11
[305 x 279 mm]
Variations
C= Single/
Multi Zone
Heat/Cool
Designation
K= 600-1200 CFM
[283-566 L/s]
M= 1200-2000 CFM
[566-944 L/s]
Fuel Code
S= U.S. and
Canadian
Natural Gas
Electric
Ignition
06E
07E
09E
10E
12E
Electric
Ignition–
NOx Models
06N
07N
09N
10N
—
Input
BTU/HR
60,000 [17.6 kW]
75,000 [22.0 kW]
90,000 [26.4 kW]
105,000 [30.7 kW]
120,000 [35.2 kW]
—
General Data
U.S. and Canadian Models
Model Number Identification
[ ] Designates Metric Conversions
5

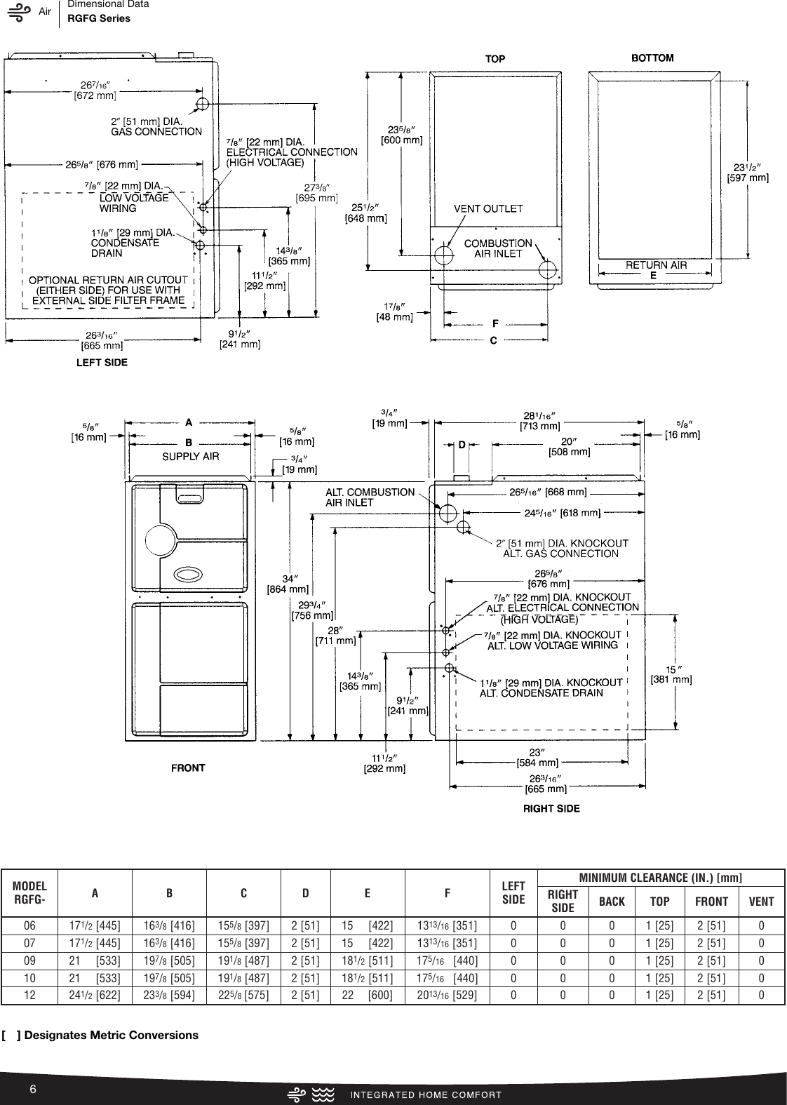
Air Dimensional Data
RGFG Series
MODEL
RGFG- A B C D E F LEFT
SIDE
MINIMUM CLEARANCE (IN.) [mm]
RIGHT
SIDE BACK TOP FRONT VENT
06 171/2[445] 163/8[416] 155/8[397] 2 [51] 15 [422] 1313/16 [351] 0 0 0 1 [25] 2 [51] 0
09 21 [533] 197/8[505] 191/8[487] 2 [51] 181/2[511] 175/16 [440] 0 0 0 1 [25] 2 [51] 0
10 21 [533] 197/8[505] 191/8[487] 2 [51] 181/2[511] 175/16 [440] 0 0 0 1 [25] 2 [51] 0
12 241/2[622] 233/8[594] 225/8 [575] 2 [51] 22 [600] 2013/16 [529] 0 0 0 1 [25] 2 [51] 0
07 171/2[445] 163/8[416] 155/8[397] 2 [51] 15 [422] 1313/16 [351] 0 0 0 1 [25] 2 [51] 0
[ ] Designates Metric Conversions
6

Air Blower Performance Data
RGFG Series
7
MODEL
RGFG-
BLOWER SIZE
(D x W)
IN. [mm]
ECM
MOTOR H.P.
[W]
BLOWER
SPEED
(SELECTED W/DIP
SWITCHES)
CFM [L/s] AIR DELIVERY
EXTERNAL STATIC PRESSURE
INCHES WATER COLUMN [kPa]
09 12 x 11
[305 x 279]
1
[746]
HIGH
MED-HI
MED
LOW
2000 [944]
1600 [755]
1400 [661]
1200 [566]
0.1 [.02]-0.8 [.20]
06 11 x 7
[279 x 178]
1/2
[373]
HIGH
MED-HI
MED
LOW
1200 [566]
1000 [472]
800 [378]
600 [283]
10 12 x 11
[305 x 279]
1
[746]
HIGH
MED-HI
MED
LOW
2000 [944]
1600 [755]
1400 [661]
1200 [566]
12 11 x 10
[279 x 254]
1
[746]
HIGH
MED-HI
MED
LOW
2000 [944]
1600 [755]
1400 [661]
1200 [566]
07 11 x 7
[279 x 178]
1/2
[373]
HIGH
MED-HI
MED
LOW
1200 [566]
1000 [472]
800 [378]
600 [283]
[ ] Designates Metric Conversions

Air Accessories
RGFG Series
8
CONTRACTOR BENEFITS:
• Multi-Purpose Thermostat-Setup, Control & Diagnostics
• Auto-Configuration – No Manual Settings Required in the Field
• System History – More Accurate Diagnostics
• Easy Installation – Requires only 4 wires
• Diagnostic Messages (Service Access to Fault Codes)
• Blower Adjustment in Heat and Cool
• Programmable Fan
• USB Interface for contractor contact information and thermostat
programming
HOMEOWNER BENEFITS:
• Scrolling System Status
• De-Humidification Control
• Humidification Control
• Heat/Cool/Auto Change-over
• Outdoor Temperature Display
• Backlight On/Off
• Intelligent Scheduling Ramp-Up/Program Anticipation
• Audio Notifications On/Off
• Air Filter, UV Lights & Humidifier Maintenance Reminder
• Temperature Offset
• Continuous Fan (Hi, Med, Lo)
IMPORTANT:
Non-Communicating Modulating Thermostat:
RHC-TST412MDMS (T-Stat Only)
*PROGRAMMABLE THERMOSTAT ACCESSORIES:
Adapter Plate = F61-2600
Remote F1451328 and F1451378 Sensor
*Available through PROSTOCK®.
VENT TERMINATION KITS CONCENTRIC:
HORIZONTAL/VERTICAL =
RXGY-E03A (US & Canadian Installations)
HORIZONTAL TWO PIPE: RXGY-D02, RXGY-D03, RXGY-D04
(US Installations)
RXGY-D02A, RXGY-D03A, RXGY-D04A (Canadian Installations)
RXGY-G02 (US Only)
CONDENSATE PUMP KIT: RXGY-B01
NEUTRALIZER KIT: RXGY-A01
RETURN AIR PLENUM: RXGR-C17B
RXGR-C21B
RXGR-B24B
EXTERNAL BOTTOM FILTER RACK: RXGF-CB
EXTERNAL SIDE FILTER RACK: RXGF-CA
*Filter racks are shipped without filters.
Filters shipped with furnace may be used or a suitable 1" [25.4 mm] filter.
FILTER RACK FILTER SIZES* INCHES [mm]
MODEL
RGFG-
RXGF-CB
(BOTTOM)
06 153/4x 25
[400 x 635]
09 191/4x 25
[489 x 635]
10 191/4x 25
[489 x 635]
12 223/4x 25
[578 x 635]
RXGF-CA
(SIDE)
153/4x 25
[400 x 635]
153/4x 25
[400 x 635]
153/4x 25
[400 x 635]
153/4x 25
[400 x 635]
07 153/4x 25
[400 x 635]
153/4x 25
[400 x 635]
PLENUM DATA FOR “A” COILS
Plenum adapters are required in some instances for use on upflow
applications when plenum and furnace size do not match.
FURNACE
WIDTH
IN. [mm]
PLENUM
WIDTH
IN. [mm]
PLENUM ADAPTER
UPFLOW
COIL
PLENUM
171/2[445] 161/4[413] RXAA-C185 RXAL-B16BU
171/2[445] 201/4[514] RXAA-C173 RXAL-B20BU
171/2[445] 215/8[549] RXAA-C187 RXAL-B21BU
171/2[445] 251/4[641] RXAA-C174 RXAL-B25BU
21 [533] 221/4[565] RXAA-C176 RXAL-B22BU
241/2[622] 251/4[641] RXAA-C177 RXAL-B25BU
21 [533] 251/4[641] RXAA-C175 RXAL-B25BU
21 [533] 215/8[549] RXAA-C188 RXAL-B21BU
241/2[622] 215/8[549] RXAA-C187 RXAL-B21BU
LP KIT: (Available through PROSTOCK®)
U.S./Canadian = RXGJ-FP27 (HU Fuel codes).
FOSSIL FUEL KIT
RXPF-F02
[ ] Designates Metric Conversions
RHC-TST550CMMS
THERMOSTATS
RECOMMENDED MODULATING COMMUNICATING
FURNACE THERMOSTAT
FOR HIGH ALTITUDES:
Installations up to 8,000 ft. do not require a special kit or option.
However, an orifice change may be required based on heating value
and elevation. See Installation Instructions for more information.
CAUTION: Always follow National Fuel Gas Code (NFGC) guidelines
when converting furnaces for high altitudes.
For all installations above 2000 ft. the burner orifice size needs to be
recalculated and verified at elevations above 2000 ft. A burner orifice
change may still be required. See Installation Instructions for more
information.
Manifold gas pressure reduction methods to adjust for altitude may
NOT be used on these models. The only method permitted on
modulating furnace models is to recalculate the burner orifice size.
See Installation Instructions for more information.

Air Limited Warranty
RGFG Series
9
Rheem will furnish a replacement for any part of this product
which fails in normal use and service within the applicable
period stated, in accordance with the terms of the limited
warranty.
*For complete details of the Limited and Conditional Warranties, including
applicable terms and conditions, contact your local contractor or the
Manufacturer for a copy of the product warranty certificate.
Conditional Unit Replacement
(Registration Required)..............................Limited Lifetime
Parts ..................................................................Ten (10) Years
Heat Exchanger..............................................Limited Lifetime
GENERAL TERMS OF LIMITED WARRANTY*

Air Notes
RGFG Series
10

Air Notes
RGFG Series
11

The new degree of comfort.
™
Rheem Heating, Cooling & Water Heating • P.O. Box 17010
Fort Smith, Arkansas 72917 • www.rheem.com
In keeping with its policy of continuous progress and product improvement, Rheem reserves the right to make changes without notice.
PRINTED IN U.S.A 05/13 QG FORM NO. G11-522 REV. 1
Rheem Canada Ltd./Ltée • 125 Edgeware Road, Unit 1
Brampton, Ontario • L6Y 0P5