Rheem Professional Classic Series Atmospheric Use And Care Manual AP14328 (03 07) Rh Us Gas
2015-04-02
: Rheem Rheem-Professional-Classic-Series-Atmospheric-Use-And-Care-Manual-683473 rheem-professional-classic-series-atmospheric-use-and-care-manual-683473 rheem pdf
Open the PDF directly: View PDF
.
Page Count: 28

FOR YOUR SAFETY!
Do not store or use gasoline or other
flammable vapors or liquids or other
combustible materials in the vicinity of this or
any other appliance. To do so may result in an
explosion or fire.
WHAT TO DO IF YOU SMELL GAS
● Do not try to light any appliance.
● Do not touch any electrical switch; do not
use any phone in your building.
● Immediately call your gas supplier from a
neighbor’s phone. Follow the gas supplier’s
instructions.
● If you cannot reach your gas supplier, call
the fire department.
● Do not return to your home until authorized
by the gas supplier or fire department.
Improper installation, adjustment, alteration,
service or maintenance can cause property
damage, personal injury, or death. Refer to
this manual. Installation and service must be
performed by a qualified installer, service
agency or the gas supplier.
WARNING: If the information in these instructions is not followed exactly,
a fire or explosion may result causing property damage, personal injury or death.
Do not destroy this manual. Please read carefully and keep in a safe place for future reference.
Recognize this symbol as an indication of Important Safety Information!
California Proposition 65 Warning:
Printed in USA
FVIR Certified
D
E
S
I
G
N
C
E
R
T
I
F
I
E
D
®
!
WARNING: This water heater is not
suitable for use in manufactured (mobile) homes!
!
!
!
!

Care and Cleaning
Safety Information
Installation Instructions
Operating Instructions
Troubleshooting Tips
Customer Service
Staple sales slip or cancelled check here.
Inside you will find many helpful hints on how to use and
maintain your water heater properly. A little preventive care
on your part can save you time and money over the life of your
water heater.
You’ll find many answers to common problems in
the Troubleshooting Guide. If you review the chart of
Troubleshooting Tips first, you may not need to call for service.
Your safety and the safety of others are very important. There
are many important safety messages in this manual and on your
appliance. Always read and obey all safety messages.
This is the safety alert symbol. Recognize this symbol as
an indication of Important Safety Information!
This symbol alerts you to potential hazards that can kill
or hurt you and others.
All safety messages will follow the safety alert symbol and
either the word “DANGER”, “WARNING”, “CAUTION” or
“NOTICE”.
These words mean:
DANGER An imminently hazardous situation
that will result in death or serious
injury.
WARNING A potentially hazardous situation that
could result in death or serious injury
and/or damage to property.
CAUTION A potentially hazardous situation that
may result in minor or moderate
injury.
NOTICE: Attention is called to observe a
specified procedure or maintain
a specific condition.
!
!
!
!

Be sure to read and understand the entire Use and Care Manual before attempting to install or operate
this water heater. It may save you time and money. Pay particular attention to the Safety Instructions.
Failure to follow these warnings could result in serious bodily injury or death. Should you have
problems understanding the instructions in this manual, or have any questions, STOP, and get help
from a qualified service technician, or the local gas utility.
Failure to install the draft hood and properly vent the water heater to the outdoors as
outlined in the Venting Section of the Installation Instructions in this manual can result in
unsafe operation of the water heater. To avoid the risk of fire, explosion, or asphyxiation
from carbon monoxide, never operate this water heater unless it is properly vented and
has an adequate air supply for proper operation. Be sure to inspect the vent system
for proper installation at initial start-up; and at least annually thereafter. Refer to the
Care and Cleaning section of this manual for more information regarding vent system
inspection.
!
Gasoline, as well as other flammable materials and liquids (adhesives, solvents, paint
thinners etc.), and the vapors they produce are extremely dangerous. DO NOT handle,
use or store gasoline or other flammable or combustible materials anywhere near or in the
vicinity of a water heater or any other appliance. Be sure to read and follow warning label
pictured below and other labels on the water heater, as well as the warnings printed in
this manual. Failure to do so can result in property damage, bodily injury or death.
!
!
!
FLAMMABLES
Flammable Vapors
FIRE AND EXPLOSION HAZARD
Can result in serious injury or death.
Do not store or use gasoline or other flammable vapors and liquids
in the vicinity of this or any other appliance. Storage of or use of gasoline
or other flammable vapors or liquids in the vicinity of this or any other
appliance can result in serious injury or death.
WARNING

DANGER: Households with small children, disabled,
or elderly persons may require a 120°F or lower gas control
(thermostat) setting to prevent contact with “HOT” water.
!
DANGER: Hotter water increases the potential for
Hot Water SCALDS.
Time/Temperature Relationship in Scalds
120°F More than 5 minutes
125°F 11/2 to 2 minutes
130°F About 30 seconds
135°F About 10 seconds
140°F Less than 5 seconds
145°F Less than 3 seconds
150°F About 11/2 seconds
155°F About 1 second
DANGER
!
HOT
Water temperature over 125°
can cause severe burns
instantly or death from scalds.
Children, disabled and elderly are
at highest risk of being scalded.
See instruction manual before
setting temperature at water
heater.
Feel water before bathing or
showering.
Temperature limiting valves are
available, see manual.
BURN
F
!
Safety and energy conservation are factors to be considered when selecting the water
temperature setting of a water heater’s gas control. Water temperatures above 125°F
can cause severe burns or death from scalding. Be sure to read and follow the warnings
outlined on the label pictured below. This label is also located on the water heater.
NOTICE: Mixing valves are available for reducing point
of use water temperature by mixing hot and cold water
in branch water lines. Contact a licensed plumber or the
local plumbing authority for further information.
!

LP and Natural gas have an odorant added to aid in detecting a gas leak. Some people
may not physically be able to smell or recognize this odorant. If you are unsure or
unfamiliar with the smell of LP or natural gas, ask the gas supplier. Other conditions,
such as “odorant fade”, which causes the odorant to diminish in intensity, can also hide or
camouflage a gas leak.
!
● Water heaters utilizing LP gas are
different from natural gas models. A
natural gas water heater will not function
safely on LP gas and vice versa.
● No attempt should ever be made to
convert the water heater from natural
gas to LP gas. To avoid possible
equipment damage, personal injury or
fire, do not connect the water heater to a
fuel type not in accordance with the unit
data plate. LP for LP units. Natural gas
for natural gas units. These units are not
certified for any other fuel type.
● LP appliances should not be installed
below grade (for example, in a basement)
if such installation is prohibited by
federal, state and/or local laws, rules,
regulations or customs.
● LP gas must be used with great caution.
It is heavier than air and will collect first
in lower areas making it hard to detect at
nose level.
● Before attempting to light the water
heater, make sure to look and smell for
gas leaks. Use a soapy solution to check
all gas fittings and connections. Bubbling
at a connection indicates a leak that must
be corrected. When smelling to detect a
gas leak, be sure to sniff near the floor
also.
● Gas detectors are recommended in LP
& natural gas applications and their
installation should be in accordance
with the detector manufacturer’s
recommendations and/or local laws,
rules, regulations or customs.
● It is recommended that more than one
method, such as soapy solution, gas
detectors, etc., be used to detect leaks in
gas applications.
!
DANGER: If a gas leak is present or
suspected:
● Donotattempt to find the cause yourself.
● Donot try to light any appliance.
● Donot touch any electrical switch.
● Donot use any phone in your building.
● Leave the house immediately and make
sure your family and pets leave also.
● Leave the doors open for ventilation
and contact the gas supplier, a qualified
service agency or the fire department.
● Stay away from the house (or building)
until the service call has been made, the
leak is corrected and a qualified agency
has determined the area to be safe.

For your safety, the information in this manual must be followed to minimize the risk of
fire or explosion, electric shock, or to prevent property damage, personal injury, or loss of
life.
California Law requires that residential water heaters must be braced, anchored or
strapped to resist falling or horizontal displacement due to earthquake motions. For
residential water heaters up to 52-gallon capacity, a brochure with generic earthquake
bracing instructions can be obtained from: Office of the State Architect, 1102 Q Street,
Suite 5100, Sacramento, CA 95814 or you may call 916-445-8100 or ask a water heater
dealer.
However, applicable local codes shall govern installation. For residential water heaters
of a capacity greater than 52 gallons, consult the local building jurisdiction for acceptable
bracing procedures.
●
●
●
● Do not
!

Installing the water heater.
This water heater must be installed in accordance with these instructions, local codes, utility company
requirements, and/or in the absence of local codes, use the latest edition of the American National
Standard/National Fuel Gas Code. A copy can be purchased from either the American Gas Association,
400 N. Capitol Street NW, Washington, DC 20001 as ANSI standard Z223.1 or National Fire Protection
Association, 1 Batterymarch Park, Quincy, MA 02269 as booklet NFPA 54.
Location
The water heater should not be located
in an area where leakage from the tank
or connections will result in damage
to the area adjacent to the heater or to
lower floors of the structure.
When such areas cannot be avoided it is
recommended that a suitable catch pan,
adequately drained, must be installed
under the water heater.
The pan must not restrict air flow
to the combustion air inlet openings
(perforation openings) located around the
lower perimeter of the water heater.
When installed in a closet, DO NOT
block or obstruct any of the combustion
air inlet openings located around the
perimeter of the water heater. A
minimum of 1” is required between
these combustion air inlet openings and
any obstruction.
shut down condition of the water heater
which will not allow the water heater
to ignite until examined by a Qualified
Service Technician.
●
●
●
● Do not
●
●
●
The auxiliary catch pan
installation MUST conform
to local codes.
WARNING: Combustible
construction refers to
adjacent walls and ceilings
and should not be confused
with combustible or
flammable products and
materials. Combustible
and/or flammable products
and materials should never
be stored in the vicinity of
this or any gas appliance.
Location Front Sides Rear Top
Top View Closet
Top View Alcove
!

Installing the water heater.
Combustion and Ventilation Air
Proper operation of the water heater
requires air for combustion and
ventilation. Provisions for combustion
and ventilation air must comply with
referenced codes and standards.
When installed in a closet, DO NOT block
or obstruct any of the combustion air inlet
openings located around the perimeter
of the water heater. A minimum of 1” is
required between these combustion air inlet
openings and any obstruction.
NOTICE: If the water heater is installed
in an unconfined space within a building
of conventional frame, masonry or metal
construction, infiltration air is normally
adequate for proper combustion and
ventilation. If the water heater is installed in
a confined space, provisions for combustion
and ventilation air must be made.
NOTICE: If the duct openings which supply
combustion and ventilation air are to be
covered with a protective screen or grill,
the net free area (openings in the material)
of the covering material must be used
in determining the size of the openings.
Protective screening for the openings MUST
NOT be smaller than 1/4”mesh to prevent
clogging by lint or other debris.
Corrosive Atmospheres
NOTICE: The water heater
should not be installed near
an air supply containing
halogenated hydrocarbons.
Inspect Shipment

Thermal Expansion
Determine if a check valve exists in the inlet
water line. Check with your local water
utility company.
“closed
water system”
“open”
“thermal expansion”“open”
“closed water system”
“thermal
expansion”
will not
Typical Installation
Water Supply Connections
IMPORTANT: Do not
apply heat to the HOT or
COLD water connections. If
sweat connections are used,
sweat tubing to adapter
before fitting adapter to the
cold water connections on
heater. Any heat applied
to the cold water supply
fittings will permanently
damage the dip tube.
NOTICE: The National
Fuel Gas Code (NFGC)
mandates a manual
gas shut-off valve: See
(NFGC) for complete
instructions. Local codes
or plumbing authority
requirements may vary
from the instructions or
diagrams provided and
take precedent over these
instructions.

Installing the water heater.
A new combination temperature and pressure relief valve, complying with the Standard for Relief Valves
and Automatic Gas Shut-Off Devices for Hot Water Supply Systems, ANSI Z21.22, is supplied and must
remain in the opening provided and marked for the purpose on the water heater. No valve of any type
should be installed between the relief valve and the tank. Local codes shall govern the installation of
relief valves.
Relief Valve
To Fill the Water Heater
WARNING: The tank
must be full of water before
heater is turned on. The
water heater warranty does
not cover damage or failure
resulting from operation
with an empty or partially
empty tank.
Condensation

WARNING: Do not attempt to convert this water heater for use with a different type of gas other than the type
shown on the rating plate. Such conversion could result in hazardous operating conditions.
High Altitude
!
WARNING:
Pressure Testing the Gas Supply System
Gas Supply
Leak Testing
WARNING: Never use
an open flame to test for
gas leaks, as property
damage, personal injury, or
death could result.

Installing the water heater.
The water heater must be installed with the factory supplied draft hood in place.
Insulation Blankets
Venting
N
CAUTION: If local codes require the
application of an external insulation
blanket to this water heater, pay careful
attention to the following so as not to
restrict the proper function and
operation of the water heater:
●
-
-
-
-
DANGER: Failure to
install the draft hood and
properly vent the water
heater to the outdoors as
outlined in the Venting
section of this manual will
result in unsafe operation of
the water heater causing
bodily injury, explosion,
fire or death. To avoid the
risk of fire, explosion, or
asphyxiation from carbon
monoxide, NEVER operate
the water heater unless it is
properly vented and has
adequate air supply for
proper operation as
outlined in the Venting
section of this manual.
WARNING: If local codes
require external application
of insulation blanket kits
the manufacturer’s
instructions included with
the kit must be carefully
followed.

Typical vertical piping arrangement Typical horizontal piping arrangement
Heat Trap
Hot and Cold Pipe Insulation Installation
°
°
For increased energy efficiency, this water heater has been supplied with a 2 3/8”
section of T&P insulation. Please install the insulation as shown below.
Typical Top Connect T & P Arrangement.
T&P Insulation Installation
Typical Side Connect T & P Arrangement.

Installing the water heater.
DO
❑DO
❑DO
❑DO
❑DO
❑DO
DON’T
❑DON’T
❑DON’T
❑ DON’T
❑DON’T
During Installation of this water heater...........
Burner Access
Door Grommet
Sight Glass

Installation Checklist
A. Water Heater Location
B. Water Supply
C. Gas Supply
D. Relief Valve
E. Venting
❑
❑
❑
❑
❑
❑
❑
❑
❑
❑
❑
❑
❑
❑
❑
❑
❑
❑
❑
❑
❑
.
❑
❑
.

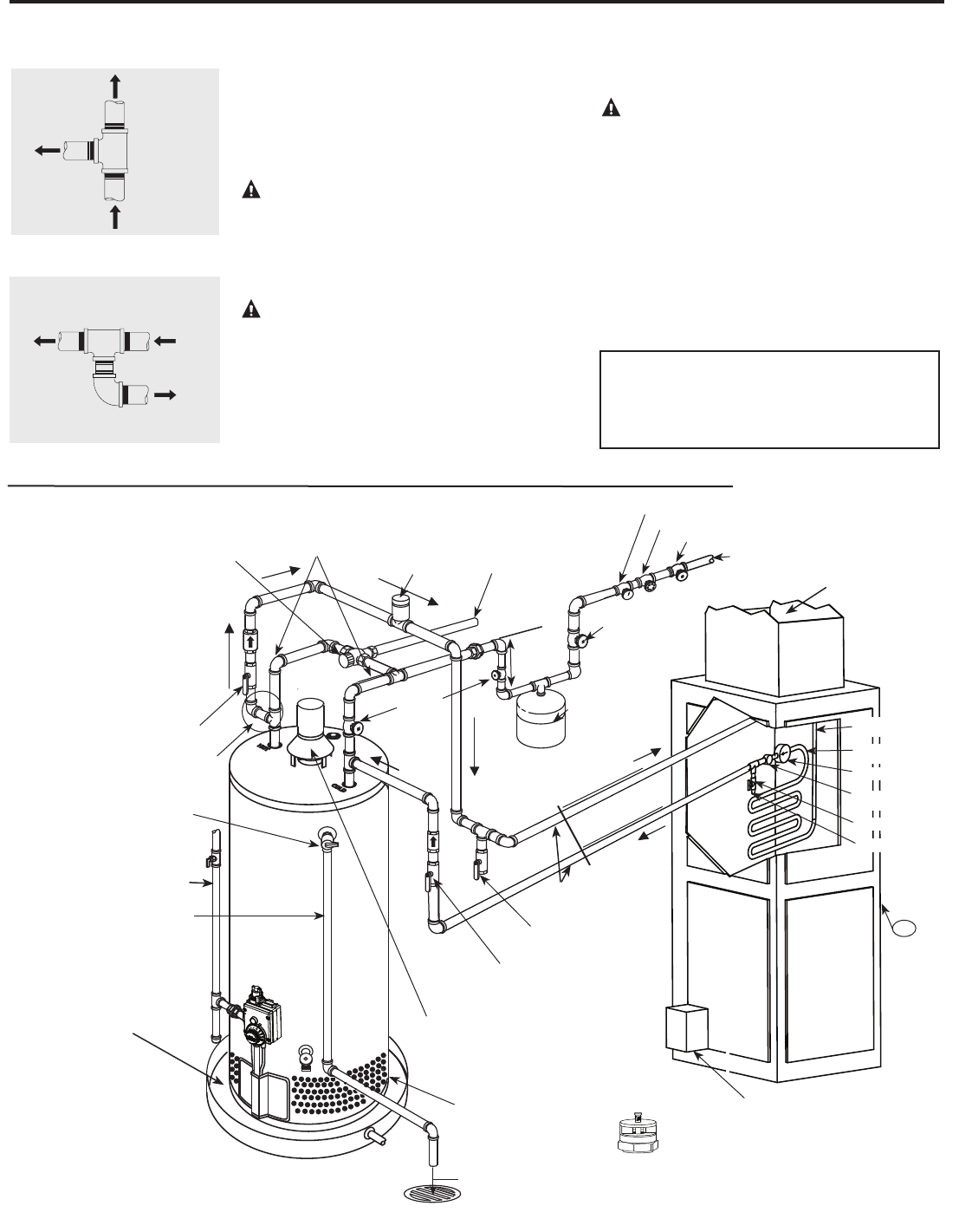
Tee fitting for vertical hot
water supply lines.
Hot water
supply to
house
From HOT
outlet on
water heater
Hot water
supply to
heating
unit
Supplemental instructions for gas water heaters installed in
potable/space heating applications.
Local codes or plumbing authority requirements may vary from the instructions or diagrams provided in this
manual and take precedent over these instructions.
Tee fitting for horizontal hot
water supply lines.
From HOT
outlet on
water heater
Hot water
supply to
house
Hot water supply
to heating unit
Combination Potable and Space Heating Application
DANGER: When this system requires
water for space heating at elevated
temperatures (above 125°F [52°C.]), a mixing
or tempering valve must be installed in the
hot water supply line to the house in order to
reduce the scald hazard potential.
DANGER: Any piping or components used
in the installation of this water heater in a
combination potable and space heating
application must be suitable for use with
drinking water.
DANGER: If this water heater is installed
in an application intended to supply domestic
hot water needs and hot water for space
heating purposes, do not connect the heater
to an existing heating unit or components of
a heating system that have previously been
used with a non drinking water system. Toxic
chemicals such as those used for boiler
treatment may be present and will
contaminate the drinking water supply
causing possible health risks. Never
introduce toxic chemicals, such as those used
for boiler treatment, into this system.
NOTICE:
Typical Piping Diagram for Combination Potable/Space Heating Installation
NOTICE:
Vacuum Relief Valve
(Not Supplied)
If required, install per local codes
and valve manufacturer’s
instructions.

Lighting the water heater.
Before operating this water heater, be sure to read and follow the instructions on the label pictured
below and all other labels on the water heater, as well as the warnings printed in this manual. Failure to
do so can result in unsafe operation of the water heater resulting in property damage, personal injury,
or death . Should you have any problems reading or following the instructions in this manual, STOP,
and get help from a qualified person.
instructions exactly, a re or explosion may result causing property damage,
personal injury or loss of life.
If you do not follow these instructions and the Use & Care Manual

Time/Temperature Relationship in Scalds
Do
DoNot
Do Not
Do Not
Do Not
NOTICE: Flammable vapors can be drawn by air
currents from surrounding areas to the water heater.
Operating the water heater.
CAUTION: Hydrogen gas can be produced in a hot water system served by this water heater that has not been used for a
long period of time (generally two weeks or more). HYDROGEN GAS IS EXTREMELY FLAMMABLE!! To dissipate such
gas and to reduce risk of injury, it is recommended that the hot water faucet be opened for several minutes at the kitchen sink
before using any electrical appliance connected to the hot water system. If hydrogen is present, there will be an unusual sound
such as air escaping through the pipe as the water begins to flow. Do not smoke or use an open flame near the faucet at the
time it is open.
DANGER: Hotter water
increases the Potential
for Hot Water SCALDS.
Households with small
children, disabled, or elderly
persons may require a
120°F or lower gas control
(thermostat) setting to
prevent contact with HOT
water.
Water Temperature Setting
!

Operating the water heater.
Water Temperature Setting…
p
A
WARNING: Should overheating occur or
the gas supply fail to shut off, turn off the
manual gas control valve to the appliance.
NOTICE: Replace any part of the gas
control system which has been under water.
!

Care and cleaning of the water heater.
Draining the Water Heater
CAUTION: Shut off gas to the water
heater at the gas control (thermostat)
gas cock or manual shut-off valve before
draining water.
DANGER: Before manually operating
the temperature and pressure relief valve,
make certain no one will be exposed to the
hot water released by the valve. The water
drained from the tank may be hot enough
to present a scald hazard and should be
directed to a suitable drain to prevent injury
or damage.
Housekeeping
When installed in a closet, DO NOT
block or obstruct any of the combustion air
inlet openings located around the perimeter
of the water heater. A minimum of 1” is
required between these combustion air inlet
openings and any obstruction.
Routine Preventative Maintenance
NOTICE: If the temperature and
pressure relief valve on the hot water
heater discharges periodically, this
may be due to thermal expansion in a
closed water system. Contact the water
supplier or your plumbing contractor on
how to correct this. DO NOT plug the
relief valve outlet.
DANGER: Before
manually operating the
relief valve, make certain
no one will be exposed to
the danger of the hot water
released by the valve. The
water may be hot enough to
create a scald hazard. The
water should be released
into a suitable drain to
prevent injury or property
damage.
!
DANGER: Combustible
materials, such as clothing,
cleaning materials, or
flammable liquids, etc., must
not be placed against or next
to the water heater.
!
DANGER: Failure to
perform the recommended
Routine Preventative
Maintenance can harm the
proper operation of this
water heater, which can cause
carbon monoxide dangers,
excessive hot water
temperatures and other
potentially hazardous
conditions.
DANGER: Hotter water
increases the potential for
Hot Water Scalds.
!
!
!
!

Venting System Inspection
Burner Inspection
CAUTION: For your safety, cleaning
of the burner must be performed only by
qualified service personnel. The burner
chamber is a sealed area. If the burner
access door is removed, the burner access
door gasket must be replaced.
Proper burner and pilot burner
pattern.
Care and cleaning of the water heater.
Vacation and Extended Shut-Down
NOTICE: Refer to the
Hydrogen Gas Caution in the
Operating Instructions.
Anode Rod
NOTICE: Do not remove
the anode rod from the water
heater’s tank, except for
inspection and/or replacement,
as operation with the anode
rod removed will greatly
shorten the life of the glass
lined tank and will exclude
warranty coverage.
!

Before You Call For Service…
Troubleshooting Tips
Save time and money! Review the charts on the following pages first and you may not need to call for service.
ProblemPossible Causes What To Do
Condensation -
-
-
Yellow flame -
or soot -
-
Unable to light -
the pilot burner
-
-
-
Pilot burner does not stay -
lit when the gas control
knob is released
-
-
-
-
CAUTION: For your safety DO NOT attempt repair of gas piping, gas control (thermostat), burners, vent connectors or
other safety devices. Refer repairs to qualified service personnel.

ProblemPossible Causes What To Do
Rumbling noise -
Relief valve -
producing popping
noise or draining
Not enough or -
no hot water
-
-
-
-
-
Water is too hot ●
●
Pilot Burner Lights, but ●
Main Burner will not
stay lit.
CAUTION: For your safety DO NOT attempt repair of gas piping, gas control (thermostat), burners, vent connectors or
other safety devices. Refer repairs to qualified service personnel.
Before You Call For Service…
Troubleshooting Tips
Save time and money! Review the charts on the following pages first and you may not need to call for service.

Notes…

Notes…

Notes…

Replacement Parts.
Instructions For Placing a Parts Order
CAUTION: For your safety, DO
NOT attempt repair of gas piping,
gas control (thermostat), burners,
vent connectors or other safety devices.
Refer repairs to qualified service
personnel.
**.
